ENFORCEMENT AND PENALTIES
In case any building or structure is erected, constructed, reconstructed, altered, repaired or maintained, or any building, structure, land or water is used in violation of this zoning code, and such violation has not been corrected within 30 days of notice as a result of actions taken pursuant to section 134-62, the director shall transmit all evidence, along with a letter of findings and facts, to the development services director, requesting action by the City Commission. The City Commission will consider such request, and it reserves unto itself the right to pursue any remedy provided under state statutes following consultation with the city attorney.
(Ord. No. 2024-04, § 1(Att. A), 5-21-2024)
A violation of this zoning code is declared to be a noncriminal violation punishable as provided in F.S. § 162.09.
(Ord. No. 2024-04, § 1(Att. A), 5-21-2024)
Any member of the City Commission, Planning and Zoning Board, the city development services director, city employees, the City's attorney and employees of the city attorney's office, charged with the enforcement and interpretation of this zoning chapter in the discharge of their duties, shall not thereby render themselves liable personally. They are relieved from all personal liability for any damage that may accrue to persons or property as a result of any act required in the discharge of their duties. Any suit brought against any officer, member or employee of the above-mentioned agencies because of such act performed by him in the enforcement of any provisions of this zoning chapter shall be defended by the City until the final determination of the proceedings. Any officer, member or employee of the above-mentioned agencies shall, further, be held harmless and indemnified against any and all claims and/or judgments, except when such officer, member or employee is found guilty of willful and wanton misconduct or fraud. The liability protection under this article also includes that protection as outlined under F.S. ch. 111, and amendments thereto.
(Ord. No. 2024-04, § 1(Att. A), 5-21-2024)
Nothing contained in this article shall prevent the City Commission from taking such lawful action as is necessary to prevent or remedy any violation. The City commission shall be specifically entitled to such injunctive relief.
(Ord. No. 2024-04, § 1(Att. A), 5-21-2024)
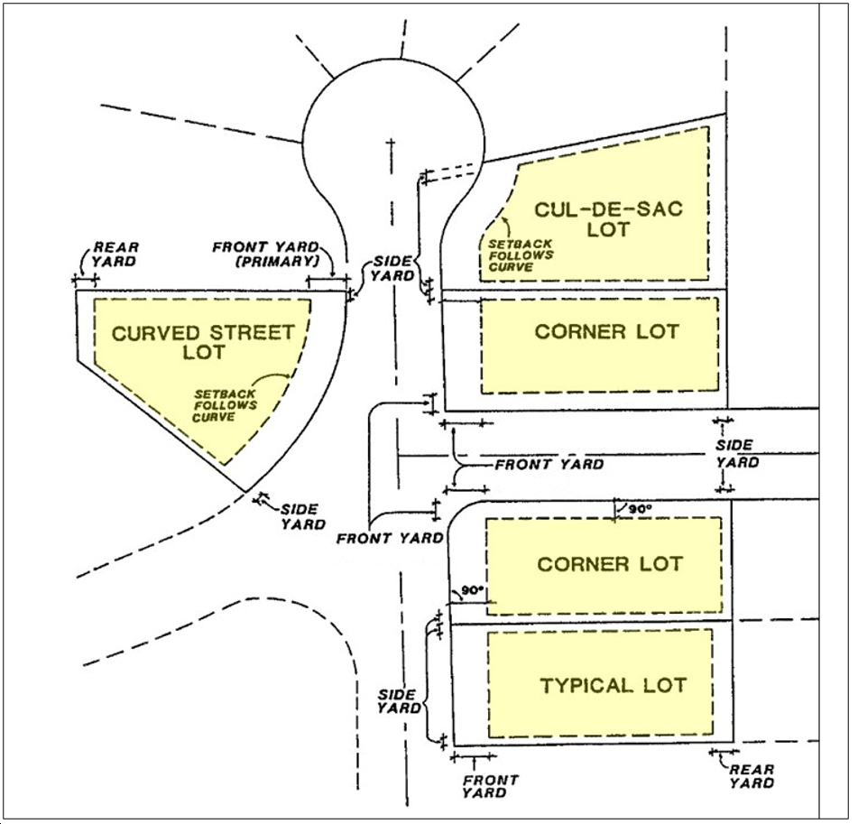
Illustration 1 - Lot & Yard Types
Illustration 2 - Irregular Lots
Minimum Parking Layout Dimensions
1
8' width applies to on-street parking stalls.
2
The Development Services Director may require greater aisle width due to emergency
equipment access needs. Aisles less than 24' shall not be designated as Fire Access.
N/A - Not Applicable
Reference Drawing for Minimum Parking Dimensions
ILLUSTRATION 3 - PARKING SPACE DIMENSIONS
ILLUSTRATION 4-A. VISIBILITY AT INTERSECTIONS
Visibility Triangle Requirements
No structural and planting masses shall be permitted between three (3) feet and ten (10) feet above the average grade of each street (see illustration below).
ILLUSTRATION 4-B. VISION CLEARANCE
Illustration 5
Building Height Measured from Established Grade
Height of building means the vertical distance from the established grade at the center of the front of the building to the highest point of the roof surface for a flat roof, to the deckline for a mansard roof and the mean height level between eaves and ridge for gable, hip and gambrel roofs.
Illustration 6
Lot and Building Coverage
ILLUSTRATION 7 - TYPICAL BERM SIDE VIEW
Standards
1.
Berm height 4-feet above grade elevation (minimum); variable above 4-feet.
2.
Fence height 2-feet above top of berm (minimum). Fences are optional.
3.
Trees every 6-feet (minimum) along the top of the berm, except where there is a fence.
4.
Evergreen shrubs every 6-feet (minimum) between trees and on side slopes.
5.
All side slopes are to be seeded, mulched, or planted with stabilizing groundcover.
ILLUSTRATION 8 - MAXIMUM SIGN AREA PERMITTED
SIGN TYPES
ENFORCEMENT AND PENALTIES
In case any building or structure is erected, constructed, reconstructed, altered, repaired or maintained, or any building, structure, land or water is used in violation of this zoning code, and such violation has not been corrected within 30 days of notice as a result of actions taken pursuant to section 134-62, the director shall transmit all evidence, along with a letter of findings and facts, to the development services director, requesting action by the City Commission. The City Commission will consider such request, and it reserves unto itself the right to pursue any remedy provided under state statutes following consultation with the city attorney.
(Ord. No. 2024-04, § 1(Att. A), 5-21-2024)
A violation of this zoning code is declared to be a noncriminal violation punishable as provided in F.S. § 162.09.
(Ord. No. 2024-04, § 1(Att. A), 5-21-2024)
Any member of the City Commission, Planning and Zoning Board, the city development services director, city employees, the City's attorney and employees of the city attorney's office, charged with the enforcement and interpretation of this zoning chapter in the discharge of their duties, shall not thereby render themselves liable personally. They are relieved from all personal liability for any damage that may accrue to persons or property as a result of any act required in the discharge of their duties. Any suit brought against any officer, member or employee of the above-mentioned agencies because of such act performed by him in the enforcement of any provisions of this zoning chapter shall be defended by the City until the final determination of the proceedings. Any officer, member or employee of the above-mentioned agencies shall, further, be held harmless and indemnified against any and all claims and/or judgments, except when such officer, member or employee is found guilty of willful and wanton misconduct or fraud. The liability protection under this article also includes that protection as outlined under F.S. ch. 111, and amendments thereto.
(Ord. No. 2024-04, § 1(Att. A), 5-21-2024)
Nothing contained in this article shall prevent the City Commission from taking such lawful action as is necessary to prevent or remedy any violation. The City commission shall be specifically entitled to such injunctive relief.
(Ord. No. 2024-04, § 1(Att. A), 5-21-2024)
Illustration 1 - Lot & Yard Types
Illustration 2 - Irregular Lots
Minimum Parking Layout Dimensions
1
8' width applies to on-street parking stalls.
2
The Development Services Director may require greater aisle width due to emergency
equipment access needs. Aisles less than 24' shall not be designated as Fire Access.
N/A - Not Applicable
Reference Drawing for Minimum Parking Dimensions
ILLUSTRATION 3 - PARKING SPACE DIMENSIONS
ILLUSTRATION 4-A. VISIBILITY AT INTERSECTIONS
Visibility Triangle Requirements
No structural and planting masses shall be permitted between three (3) feet and ten (10) feet above the average grade of each street (see illustration below).
ILLUSTRATION 4-B. VISION CLEARANCE
Illustration 5
Building Height Measured from Established Grade
Height of building means the vertical distance from the established grade at the center of the front of the building to the highest point of the roof surface for a flat roof, to the deckline for a mansard roof and the mean height level between eaves and ridge for gable, hip and gambrel roofs.
Illustration 6
Lot and Building Coverage
ILLUSTRATION 7 - TYPICAL BERM SIDE VIEW
Standards
1.
Berm height 4-feet above grade elevation (minimum); variable above 4-feet.
2.
Fence height 2-feet above top of berm (minimum). Fences are optional.
3.
Trees every 6-feet (minimum) along the top of the berm, except where there is a fence.
4.
Evergreen shrubs every 6-feet (minimum) between trees and on side slopes.
5.
All side slopes are to be seeded, mulched, or planted with stabilizing groundcover.
ILLUSTRATION 8 - MAXIMUM SIGN AREA PERMITTED
SIGN TYPES