DISTRICT REGULATIONS[2]
Cross reference— Home occupations, § 17-2.
A.
Uses permitted. Within any R-1 single-family dwelling district no building, structure, land or water shall be used except for one (1) or more of the following uses:
1.
Single-family dwellings with accessory buildings customarily incident thereto, subject to each of the requirements set forth in this section and throughout this chapter.
2.
Public schools.
3.
Parks and recreation facilities owned or leased by or operated under the supervision of the Village of North Palm Beach.
4.
Detached fence storage areas.
5.
Satellite dish antenna.
6.
Community residential homes. Community residential homes of six (6) or fewer residents which otherwise meet the definition of a community residential home, provided that such homes shall not be located within a radius of one thousand (1,000) feet of another existing such home with six (6) or fewer residents.
7.
Family day care home.
8.
Lamp post.
9.
Decorative post structure.
B.
Building height regulations. All single-family dwellings shall be limited to two (2) stories and thirty feet (30') in height. For the purposes of this subsection, height shall be measured from the average elevation of the existing grade prior to land alteration for properties outside of special flood hazard areas and from the required design flood elevation for properties within special flood hazard areas. Height shall be measured to the highest point of the following:
1.
The coping of a flat roof and the deck lines on a mansard roof;
2.
The average height level between the eaves and roof ridges or peak for gable, hip or gambrel roofs; or
3.
The average height between high and low points for a shed roof.
Decorative architectural elements, chimneys, mechanical equipment, non-habitable cupolas, elevator shafts or similar appurtenances shall be excluded from the foregoing height restrictions. Rooftops shall not be used for pools, decks, or other spaces to congregate.
C.
Building site area regulations. The minimum lot or building site area for each single-family dwelling shall be seven thousand five hundred (7,500) square feet and have a width of not less than seventy-five (75) feet, measured at the building line.
D.
Yard space regulations.
1.
Front yard. There shall be a front yard of not less than twenty-five (25) feet for the first story and thirty (30) feet for the second story measured from the street line to the front building line.
2.
Rear yard. There shall be a rear yard of not less than twenty (20) feet for the first story and twenty-five (25) feet for the second story measured from the rear building line to the rear lot line.
3.
Side yards. There shall be a side yard on each side of the side building line of not less than ten (10) feet for the first story and fifteen (15) feet for the second story. In the case of corner lots, no building and no addition to any building shall be erected or placed nearer than twenty (20) feet to the side street line of any such lot.
(a)
For a distance of one block on streets intersecting U.S. #1, measured from the right-of-way line of said U.S. #1, side yards of at least twenty-five (25) feet in depth shall be provided.
4.
Applicability of second story setback. The second story setback shall apply only to the roofed portion of the second story of a two-story, single-family dwelling and shall not apply to non-roofed second story patios or balconies.
E.
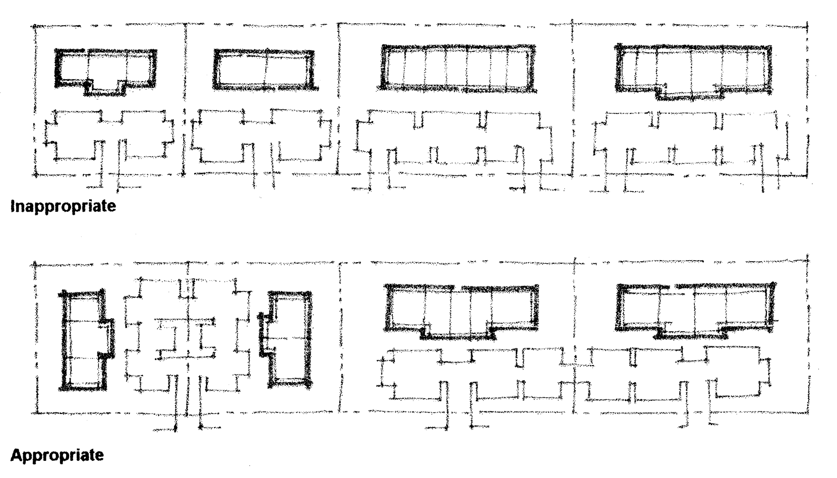
Wall treatment. All exterior walls shall contain articulation creating visual interest utilizing at least four (4) features in accordance with the following:
1.
At least two (2) different features listed below must be included; however, windows may be used for all four (4) features so long as each window meets the requirements of subsection E.4.:
(a)
Projecting cornice.
(b)
Projecting metal canopy.
(c)
Opaque, translucent, or transparent glass windows.
(d)
Vertical articulation.
(e)
Recesses.
2.
The following features listed below may also be included and count toward the required four (4) features:
(a)
Masonry (but not flat concrete block).
(b)
Concrete or masonry plinth at wall base.
(c)
Belt courses of a different texture and color.
(d)
Decorative tile work.
(e)
Medallions.
(f)
Lighting fixtures.
3.
One of the above features may be replaced by an architectural element or feature not listed above, as approved by the village, that meets the intent of this section.
4.
Each wall treatment feature must be no less than nine (9) square feet.
5.
If the single-family dwelling is more than one story, at least thirty-five (35) percent of the wall treatment features must be located above the first story.
(Figure Deleted)
F.
Second-story floor area. The floor area of the second story of a single-family dwelling shall not exceed seventy-five (75) percent of the floor area of the first story. For the purposes of this subsection, floor area shall include all areas lying within the building perimeter established by the interior side of the exterior walls of the building, including garages, covered patios, and other open-air exterior areas that are under roof. The floor area for the second story shall include areas open to below.
G.
Off street parking regulations. At least one parking space measuring at least nine (9) feet by eighteen (18) feet (one hundred sixty-two (162) square feet) shall be provided. All parking spaces shall consist of a durable surfaced area as approved by the community development director, and may be enclosed in the dwelling, in an accessory building or in an unenclosed area or a driveway. All vehicles parking on a lot must be parked on a durable surface.
H.
Accessory structures. One detached automobile garage and one open-air pavilion may be constructed on any lot within the R-1 single-family dwelling district provided that all requirements of this chapter are met. Open air pavilions shall be subject to the following additional conditions and restrictions:
1.
Permitting.
(a)
All open-air pavilions must be permitted in accordance with all Florida Building Code and Village Code requirements.
(b)
Open-air pavilions meeting the definition of a traditional chickee hut are exempt from the Florida Building Code but shall be subject to consistency review by the village. Consistency shall be demonstrated through the issuance of a zoning permit and shall require the submittal of the following information:
(1)
A survey that includes scaled dimensions of the proposed structure, including setbacks;
(2)
Proof that the builder of the chickee hut is a member of either the Miccosukee Tribe of Indians of Florida or the Seminole Tribe of Florida (such proof consisting of a copy of the trial member's identification card); and
(3)
Drawings of the proposed structure depicting, at a minimum, the overall design, dimensions, roof materials, and height.
2.
Dimensions. Open-air pavilions shall not exceed two hundred (200) square feet in floor area. The floor area shall be measured from outside the support posts, provided that the roof overhang does not exceed three (3) feet from the support posts. If the roof overhang exceeds three (3) feet, the floor area shall consist of the entire roofed area. For structures supported by a single-pole, i.e., umbrella shape, the floor area shall be measured from the drip line of the roof material.
3.
Height. Open-air pavilions shall not exceed twelve (12) feet in height or the height of the principal building located on the lot, whichever is more restrictive. For sloped roofs, the height shall be measured at the mean roof height.
4.
Location and Setbacks.
(a)
No open-air pavilion may be erected within ten (10) feet of the side property line. This side setback shall be increased to twenty (20) feet for corner lots.
(b)
No open-air pavilion may be erected within seven and one-half (7½) feet of the rear property line.
(c)
No open-air pavilion or any portion thereof may be erected between the front line of the principal building and the front property lot line, within a utility or drainage easement, or within a required landscape buffer.
5.
Use restrictions.
(a)
An open-air pavilion shall be used only for private recreational activities as an accessory use to the principal residential use and shall not be used for habitation, for a tool room, storage room or workshop, or for any commercial purpose whatsoever.
(b)
Open-air pavilions shall not be used for storage of items of personal property, including, but not limited to, the following:
(1)
Operable or inoperable vehicles, boats, boat trailers, utility trailers or similar items of personal property;
(2)
Building materials, lawn equipment, tools or similar items; and
(3)
Ice boxes, refrigerators and other types of food storage facilities with the exception of under-counter units.
(c)
No gas, charcoal or propane grills, stoves or other types of cooking devices may be stored or utilized within a traditional chickee hut.
6.
Maintenance. Open-air pavilions shall be maintained in good repair and in sound structural condition. Painted or stained surfaces shall be free of peeling paint, mold and mildew and void of any evidence of deterioration.
7.
Design.
(a)
Open-air pavilions, with the exception of traditional chickee huts, pergolas and other structures with only partial or slatted roofs, shall incorporate the same types of building materials and be consistent with the architectural theme or style of the main or principal building.
(b)
At the request of a property owner, the community development director may approve the use of different building materials or alternate architectural themes or styles when such materials, themes or styles are complementary to the main or principal building.
(c)
Should the community development director deny the request for different building materials or alternate architectural themes or styles, a property owner may appeal this decision to the planning commission by submitting a written request for a hearing to the community development director within thirty (30) calendar days of the date of the determination. The appeal shall be placed on the next available agenda and the decision of the planning commission shall be final, subject only to judicial review by writ of certiorari.
I.
Mechanical equipment. All non-roof-mounted mechanical equipment shall be located behind the front building face of the principal structure in either the side yard or the rear yard. Such equipment shall be located adjacent to the principal structure whenever practicable, provided, however, that all mechanical equipment shall be located at least five (5) feet from the side property line and at least seven and one-half feet (7½) from the rear property line.
J.
Minimum landscaped area.
1.
All single-family dwellings shall have a minimum landscaped area of thirty percent (30%).
2.
All single-family dwellings (both one and two story) shall provide a minimum landscaped area of fifty (50) percent in the required twenty-five-foot front yard setback. Properties with frontage along urban collector roads (Lighthouse Drive and Prosperity Farms Road) shall provide a minimum landscaped area of forty (40) percent in the required twenty-five-foot front yard setback. Properties having an irregular lot shape, meaning a lot which is not close to rectangular or square and in which the width of the property at the front property line is less than required by the underlying zoning district, shall provide a minimum landscaped area of twenty-five (25) percent in the required twenty-five-foot front yard setback.
3.
A property owner who meets the overall minimum landscaped area requirement set forth in subsection (1) above and who does not meet the minimum landscaped area requirement in the twenty-five-foot front yard setback set forth in subsection (2) above may request a waiver of up to five (5) percent of the minimum required area by filing a request with the Community Development Department. The request shall be forwarded to the Planning Commission for final action. A property owner seeking such a waiver shall be required to demonstrate to the Planning Commission that he or she has made a reasonable attempt to comply with the required minimum landscaped area within the front yard setback and has mitigated any deficiency through the installation of enhanced landscaping materials, the use of permeable hardscape materials or some other acceptable means.
For the purposes of this subsection, the term minimum landscaped area shall mean a pervious landscaped area unencumbered by structures, buildings, paved parking lots, sidewalks, sports courts, pools, decks, or any impervious surface. Landscape material shall include, but not be limited to, grass, ground covers, bushes, shrubs, hedges or similar plantings, or decorative rock or bark. No landscape material shall be used for parking. However, pervious surfaces used for the parking of recreational equipment in side and rear yards shall be included in the calculation of the minimum landscaped area.
With respect to building permits for renovations of existing single-family dwellings, the minimum landscaped area standards shall apply only to the extent that the proposed scope of work impacts the applicable standard.
K.
Maximum driveway width in swale. The total width of driveways from the edge of the public roadway to the abutting privately-owned property shall not exceed a total of thirty-two feet in width at the property line, excluding flares. For lots with ninety (90) or more feet of public roadway frontage, the total width of driveways from the edge of the public roadway to the abutting privately-owned private shall not exceed a total of forty (40) feet in width at the property line, excluding flares. Each side of a flared driveway shall be no more than three (3) feet wider than the rest of the driveway.
(Ord. No. 17-71; Ord. No. 9-85, § 2, 6-27-85; Ord. No. 17-90, § 2, 6-28-90; Ord. No. 29-95, § 2, 9-28-95; Ord. No. 23-2003, § 5, 9-11-03; Ord. No. 2006-24, § 2.L.2, 11-9-06; Ord. No. 2009-04, § 4, 4-23-09; Ord. No. 2012-03, § 3, 3-22-12; Ord. No. 2014-06, § 2, 7-24-14; Ord. No. 2022-09, §§ 2, 3, 4-28-22; Ord. No. 2022-18, § 2, 10-27-22; Ord. No. 2023-17, § 2, 10-12-23; Ord. No. 2024-02, § 2, 1-25-24)
A.
Uses permitted. Within any R-2 multiple-family dwelling district, no building structure, land or water shall be used, except for one (1) or more of the following uses:
1.
Any use permitted in the R-1 single-family dwelling district.
2.
Churches.
3.
Multiple-family dwelling structures of not more than four (4) dwelling units.
4.
Detached fence storage areas.
5.
Satellite dish antenna.
6.
Community residential home of seven (7) to fourteen (14) residents.
B.
Building height regulations. No main building shall exceed two (2) stories or thirty (30) feet in height, whichever be less.
C.
Building site area regulations.
1.
For single-family dwellings the same as for the R-1 single-family dwelling district.
2.
For two-family dwelling structures the minimum lot or building site area shall be eight thousand (8,000) square feet and have a width of not less than seventy-five (75) feet.
3.
For dwelling structures having in excess of two (2) dwelling units not less than four thousand (4,000) square feet of lot area shall be added to the site for each dwelling unit in excess of two (2). No main building, however, shall occupy more than thirty-five (35) percent of the site area.
D.
Yard space regulations.
1.
Front yard. There shall be a front yard of not less than twenty-five (25) feet measured from the street line to the front building line.
2.
Rear yard. There shall be a rear yard of not less than twenty (20) feet measured from the rear building line to the rear lot line.
3.
Side yards. There shall be a side yard on each side of the side building line of not less than ten (10) feet. In the case of corner lots, no building and no addition to any building shall be erected or placed nearer than twenty (20) feet to the side street line of any such lot.
(a)
For a distance of one (1) block on streets intersecting U.S. [Highway No.] 1, measured from the right-of-way line of said U.S. [Highway No.] 1, side yards of at least twenty-five (25) feet in depth shall be provided.
E.
Floor area regulations. In multiple-family dwelling structures, each dwelling unit having one (1) bedroom shall have a minimum floor area of seven hundred fifty (750) square feet. An additional one hundred fifty (150) square feet of floor area shall be required for each additional bedroom provided.
F.
Off-street parking regulations.
1.
For single-family dwellings, the same as for the R-1 single-family dwelling district.
2.
For each multiple-family dwelling unit, there shall be provided two (2) or more parking spaces measuring at least nine (9) feet by eighteen (18) feet (one hundred sixty-two (162) square feet) each in accordance with the following formula: Two (2) such spaces shall be provided for each dwelling unit containing not more than two (2) bedrooms, and two and one-half (2½) of such spaces shall be provided for each dwelling unit containing three (3) or more bedrooms, with the provision that for an uneven number of units, the fractional space result produced by the application of such formula shall count as a full space. (For examples: four (4) dwelling units containing three (3) or more bedrooms shall require ten (10) off-street parking spaces; three (3) dwelling units containing three (3) or more bedrooms shall require eight (8) off-street parking spaces.)
3.
For churches, there shall be provided one (1) off-street parking space measuring at least nine (9) feet by eighteen (18) feet (one hundred sixty-two (162) square feet) for each four (4) people accommodated within the church auditorium.
4.
For schools, there shall be one (1) off-street parking space measuring at least nine (9) feet by eighteen (18) feet (one hundred sixty-two (162) square feet) for every one thousand (1,000) square feet of floor area.
G.
Community residential home regulations.
1.
When a site for a community residential home has been selected by a sponsoring agency, the agency shall notify the mayor and village manager in writing and include in such notice the specific address of the site, the residential licensing category, the number of residents, and the community support requirements of the program. Such notice shall also contain a statement from the district administrator of HRS indicating the need for and the licensing status of the proposed community residential home and specifying how the home meets applicable licensing criteria for the safe care and supervision of the clients in the home. The HRS district administrator shall also provide the Village the most recently published data compiled that identifies all community residential homes in the district in which the proposed site is to be located.
2.
The village shall review the notification of the sponsoring agency in accordance with the zoning code.
3.
The village shall not deny the siting of a community residential home unless the village establishes that the siting of the home at the site selected:
(a)
Does not otherwise conform to existing zoning regulations applicable to other multifamily uses in the area;
(b)
Does not meet applicable licensing criteria established and determined by the Florida Department of Health and Rehabilitative Services, including requirements that the home be located to assure the safe care and supervision of all clients in the home;
(c)
Would result in such a concentration of community residential homes in the area in proximity to the site selected, or would result in a combination of such homes with other residences in the village, such that the nature and character of the area would be substantially altered. A home that is located within a radius of one thousand two hundred (1,200) feet of another existing community residential home in a multifamily zone shall be an overconcentration of such homes that substantially alters the nature and character of the area. A home that is located within five hundred (500) feet of an area of single-family zoning substantially alters the nature and character of the area.
(d)
All distance requirements in this section shall be measured from the nearest point of the existing home or area of single-family zoning to the nearest point of the proposed home.
4.
A dwelling unit housing a community residential home shall be subject to the same village laws and ordinances applicable to other noncommercial, residential family units in this zoning district.
H.
Mechanical equipment. All non-roof mounted mechanical equipment shall be located behind the front building face of the principal structure in either the side yard or the rear yard. Such equipment shall be located adjacent to the principal structure whenever practicable, provided, however, that all mechanical equipment shall be located at least five (5) feet from the side property line and at least seven and one-half feet (7½) from the rear property line.
(Ord. No. 204-69, §§ 1, 2; Ord. No. 17-71, § 2; Ord. No. 10-73, §§ 3, 4, 9-13-73; Ord. No. 9-85, § 3, 6-27-85; Ord. No. 17-90, § 3, 6-28-90; Ord. No. 2012-03, § 4, 3-22-12; Ord. No. 2014-06, § 2, 7-24-14)
Editor's note— Subsection E of this section derived from Ord. No. 204-69, § 2, which did not specifically amend the 1970 Code and was codified as subsection E at the discretion of the editor.
(a)
Locations permitted.
(1)
Artificial turf (also referred to as synthetic grass) shall only be permitted on lots improved with a single-family or two-family dwelling.
(2)
Artificial turf is limited to rear and side yards.
(3)
Artificial turf shall not be permitted in the front yard or in any area visible from a public right-of-way (even if in the rear or side yard), unless it is placed in between paver blocks or similar materials in a manner where the area for the artificial turf does not exceed four (4) inches in width and it does not exceed fifty (50) percent of the total area using the paver blocks or similar materials. Screening, as approved by the community development department, may be used in order to comply with visibility requirement.
(4)
No artificial turf shall be placed in any public right-of-way.
(b)
Minimum material standards. All artificial turf shall comply with the following minimum standards:
(1)
Artificial turf shall consist of green lifelike individual blades of grass that emulate natural turf in look and color, as approved by the Village building official, and shall have a minimum pile height of one and one-half (1 ½) inches, unless otherwise approved by the Village building official, and shall have a minimum tufted weight of fifty-six (56) ounces per square yard. Putting greens shall be permitted with a minimum pile height of one-quarter (¼) inch; however, putting greens shall be located in the rear yard only, shall not count toward the minimum landscaped area as set forth in subsection (e) below and shall require submission of a drainage plan along with the building permit application.
(2)
Artificial turf installations shall have a minimum permeability of thirty (30) inches per hour per square yard.
(3)
All artificial turf shall have a minimum fifteen (15) year manufacturer's warranty that protects against color fading and a decrease in pile height.
(4)
Artificial turf shall be lead-free.
(5)
All materials must include test documentation which declares that the artificial turf yarn and backing materials are disposable under normal conditions, at any U.S. landfill station (total content leach protocol (TCLP) test).
(6)
The use of indoor or outdoor carpeting as a replacement for artificial turf or natural turf shall be prohibited.
(7)
Infill materials for artificial turf are limited to organic materials and sand with a non-toxic coating.
(c)
Installation, maintenance, and repair.
(1)
All artificial turf shall, at a minimum, be installed according to the manufacturer's specifications.
(2)
All artificial turf installations shall be anchored to ensure that the turf withstands the effects of wind.
(3)
All seams shall be nailed and glued, not sewn, and edges shall be trimmed to fit against all regular and irregular edges to resemble a natural look.
(4)
If artificial turf is planned to be installed immediately adjacent to a seawall, the artificial turf shall be pinned or staked behind the seawall. No artificial turf or installation mechanism shall be attached directly to or placed on a seawall or seawall cap.
(5)
Proper drainage shall be provided for all artificial turf installations to prevent excess runoff or the pooling of water.
(6)
Artificial turf shall be visually level, with the grain pointing in a single direction.
(7)
An appropriate barrier device (e.g., concrete mow strip, bender board, brick pavers, river rock, landscaping) is required to separate artificial turf from soil and live vegetation.
(8)
Precautions for installation around existing trees shall be monitored and may be restricted to ensure tree roots are not damaged with the installation of the base material and that the overall health of the tree will not be compromised.
(9)
All artificial turf shall be maintained in a green, fadeless condition free of dirt, mud, stains, weeds, debris, tears, holes, and impressions. Maintenance shall include, but not be limited to cleaning, brushing and debris removal; repairing of depressions and ruts to maintain a visually-level surface; elimination of any odors, flat or matted areas, weeds, and evasive roots; and all edges of the artificial turf shall not be loose and must be maintained with appropriate edging or stakes.
(10)
All artificial turf must be replaced if it falls into disrepair with fading or holes or loose areas. Replacement and/or repairs shall be performed with like for like materials from the same manufacturer, if possible, and done so in a manner that results in a repair that blends in with the existing artificial turf.
(11)
An owner or applicant shall obtain a building permit from the community development department prior to the installation of any artificial turf.
(12)
The village or other public entity or utility company may remove artificial turf located within an easement at any time for any reason, including, but not limited to, providing underground access for utility work. The property owner shall bear and pay any and all costs to replace or reinstall the artificial turf.
(d)
Existing artificial turf. For those properties where artificial turf is currently installed and the artificial turf does not meet the requirements of this section, full compliance shall be required when the existing artificial turf is replaced.
(e)
Pervious area. Artificial turf installed in compliance with the requirements of this section shall be considered as one hundred (100) percent pervious area and shall count toward the required minimum landscaped area.
(Ord. No. 2023-14, § 2, 8-24-23)
A.
Uses permitted. Within any R-3 apartment dwelling district, no building structure, land or water shall be used, except for one (1) or more of the following uses:
1.
Any use permitted in the R-2 multiple-family dwelling district.
2.
Multiple-family dwelling structures having five (5) or more dwelling units.
B.
Building height regulations. For buildings in excess of two (2) stories or thirty (30) feet in height, five (5) feet shall be added to the required front, rear and side yard setbacks for each story in excess of two (2). No main building, however, shall occupy more than thirty-five (35) percent of the site area so required.
C.
Building site area regulations.
1.
For two-family dwelling structures the minimum lot or building site area shall be eight thousand (8,000) square feet, and have a minimum width of not less than seventy-five (75) feet.
2.
For dwelling structures having in excess of two (2) dwelling units, not less than two thousand (2,000) square feet of lot area shall be added to the site for each dwelling unit in excess of two (2).
3.
No structures shall occupy more than thirty-five (35) percent of the site area.
D.
Yard space regulations.
1.
Front yard.
(a)
For a main structure of two (2) stories or less, there shall be a front yard of not less than thirty-five (35) feet measured from the street line to the front building line, except along both sides of U. S. [Highway] No. 1, no setback less than one hundred (100) feet in depth measured from the front building line shall be provided. For a distance of one (1) block on streets intersecting U. S. [Highway] No. 1, measured from the right-of-way line of said U. S. No. 1, side yards of at least twenty-five (25) feet in depth shall be provided.
(b)
For structures in excess of two (2) stories in height, the front yard depth shall be controlled by the provisions defined in paragraph B of this section.
2.
Rear yard.
(a)
For structures of two (2) stories or less, the same as for the R-1 and R-2 districts.
(b)
For structures in excess of two (2) stories in height, the rear yard depth shall be controlled by the provisions defined in paragraph B of this section.
3.
Side yard.
(a)
For structures of two (2) stories or less, the same as for the R-1 and R-2 districts.
(b)
For structures in excess of two (2) stories in height, the side yard requirements shall be controlled by the provisions defined in paragraph B of this section.
4.
Exceptions.
(a)
On corner lots intersecting U. S. Highway No. 1 where the front of the building is on the intersecting street and the side yard of the build ing is on U. S. Highway No. 1, the minimum side yard setback on U. S. Highway No. 1 shall be one hundred (100) feet measured from the street line to the side building line, and only for structures in excess of twenty (20) stories in height shall have five (5) feet be added to the required side yard for each story added to the building in excess of twenty (20).
(b)
On lots bordering the established bulkhead line, the Intracoastal Waterway line or any existing bulkhead, the maximum required rear yard and side yard setbacks shall be twenty (20) feet from the established bulkhead line, Intracoastal Waterway line or existing building, whichever is closest in distance to the building line; provided, however, that said bulkhead line, Intracoastal Waterway line or existing bulkhead is at least five hundred (500) feet from the opposite bulkhead line, Intracoastal Waterway line or existing bulkhead, whichever is closest.
E.
Off-street parking regulations.
1.
For each multiple-family dwelling structure, there shall be provided two (2) or more parking spaces measuring at least nine (9) feet by eighteen (18) feet (one hundred sixty-two (162) square feet) each, in accordance with the following formula:
Two (2) such spaces shall be provided for each dwelling unit containing not more than two (2) bedrooms and two and one-half (2½) of such spaces shall be provided for each dwelling unit containing three (3) or more bedrooms, with the provision that for an uneven number of units, the fractional space result produced by the application of such formula shall count as a full space; provided, however, that in multiple-family dwellings containing more than thirty (30) dwelling units, for each dwelling unit in excess of thirty (30) units and up to sixty (60) units, one (1) such space shall be provided for each dwelling unit containing not more than two (2) bedrooms, and for each dwelling unit in excess of sixty (60) dwelling units, one and one-half (1½) such spaces shall be provided for each dwelling unit containing not more than two (2) bedrooms and two and one-half (2½) of such spaces shall be provided for each dwelling unit containing three (3) or more bedrooms, with the provision that for an uneven number of units, the fractional space result produced by the application of such formula shall count as a full space. (For example: Thirty (30) dwelling units containing two (2) bedrooms each shall require sixty (60) off-street parking spaces; sixty (60) dwelling units containing two (2) bedrooms each shall require ninety (90) off-street parking spaces; and ninety (90) dwelling units containing two (2) bedrooms each shall require one hundred thirty-five (135) off-street parking spaces.)
2.
For churches, the same as for the R-2 multiple-family dwelling district.
3.
For schools, the same as for the R-2 multiple-family dwelling district.
F.
Floor area regulations.
1.
In multiple-family dwelling structures, each dwelling unit having one (1) bedroom shall have a minimum floor area of seven hundred fifty (750) square feet. An additional one hundred fifty (150) square feet of floor area shall be required for each additional bedroom provided.
(Ord. No. 10-73, §§ 5, 6, 9-13-73; Ord. No. 13-74, § 1; Ord. No. 17-74, § 1; Ord. No. 2014-06, § 2, 7-24-14)
A.
General description. This mixed-use district will encourage the redevelopment of the US Highway 1 corridor into a vibrant mixed-use place for businesses, visitors, and residents of North Palm Beach. A Citizens Master Plan, adopted in 2016, envisioned the US Highway 1 corridor evolving into a better working and living environment with walkable and bikeable streets, compact mixed-use buildings, and convenient access to many forms of transportation. The C-MU zoning district is a form-based code that uses clear and predictable standards to guide redevelopment into this pattern.
B.
Allowable uses.
1.
Table 1 indicates allowable uses in the C-MU zoning district.
a.
The uses listed in Table 1 are grouped into four (4) use groups: Residential Uses, Lodging Uses, Business Uses, and Civic & Education Uses.
b.
In one (1) of the columns following each listed use, a symbol is provided to indicate that:
i)
This use is permitted by right; or
ii)
This use may be approved as a special exception; see section 45-16.2 for standards and procedures; or
iii)
This use, like other uses not listed in Table 1, is not permitted in the C-MU district.
c.
Terms in Table 1 are defined in section 45-2 under "Use Groups."
d.
Also refer to section 45-16.1 on uses that are similar to uses listed in Table 1.
Table 1 Allowable Uses
1
Only as part of a mixed-use development that complies with Future Land Use Policy
1.B.3 in the Comprehensive Plan.
2
;hg;Subject to the same requirements as apply in the R-2 zoning district.
2.
The Comprehensive Plan establishes restrictions on certain properties through classifications in the future land use atlas or through specific policies. Current examples in the C-MU district include the following parcels, which are indicated on the regulating plan:
a.
639 US Highway 1 (assisted living facility) requires PUD approval as a mixed-use development pursuant to Future Land Use Policy 1.B.3.
b.
201-230 Mariner Court (condominium) is classified "Medium-Density Residential," which restricts it to residential uses only, with density restricted by Special Policy 5.18.
c.
555 US Highway 1 (Faith Lutheran Church) is classified "Public Buildings & Grounds."
d.
501 US Highway 1 (Village Hall) and 303 Anchorage Drive (Library) are classified "Public Buildings & Grounds."
e.
560 US Highway 1 (Police Station) is classified as "Other Public Facilities."
C.
Regulating plan and street frontages.
1.
The C-MU zoning district includes a regulating plan that shows existing conditions (e.g. lot lines, building footprints, and rights-of-way) and then defines how and where certain regulations will apply (e.g. setbacks and height restrictions). The regulating plan for the C-MU district is presented in Figures 1 through 4.
2.
The regulating plan also defines the street frontages of all lots as either corner, mid-block, or local street. These street frontage types determine allowable building frontages. The building frontage type selected by a landowner determines many of the specific regulations that will apply to redevelopment, including the build-to zone or setback along the street frontage. See subsection 45-31.D for details.
3.
The remainder of the C-MU district provides standards on these subjects:
a.
Site and bulk standards are provided in subsection 45-31.E, including setbacks, build-to zone, building frontage standards, building height, floor and ceiling height, density, and landscape standards.
b.
Architectural features are addressed in subsection 45-31.F, including entrances, facade transparency, awnings, balconies, and bay windows.
c.
Street, alley, and easement standards are provided in subsection 45-31.G.
d.
Parking standards are provided in subsection 45-31.H.
e.
Review procedures are provided in subsection 45-31.I.
Figure 1 Regulating Plan, Yacht Club Dr. to Anchorage Dr (north)
Figure 2 Regulating Plan, Anchorage Dr (north) to Lighthouse Dr.
Figure 3 Regulating Plan, Lighthouse Dr. to Ebbtide Dr.
Figure 4 Regulating Plan, Ebbtide Dr. to Earman River
D.
Building frontage types.
1.
The allowable building frontage types for each lot are determined by the designated street frontage for that lot.
a.
Three (3) types of street frontages are defined on the regulating plan for existing streets: Corner, Mid-block, or Local Street.
b.
A landowner may select any of the allowable building frontage types shown on Table 2 for the street frontage shown on the regulating plan.
i)
For lots with two (2) street frontages, building frontages must be selected for each street frontage.
ii)
A landowner with enough frontage on a street to accommodate two (2) or more permitted building frontages may designate the corresponding building frontages for that street frontage.
iii)
Regulations for each building frontage are summarized in Table 3 through 8.
c.
Table 2 also shows a fourth street frontage, which applies only if a landowner chooses to construct a new street between US Highway 1 and the alley in the areas designated on the regulating plan; see subsection 45-31.G for details.
Table 2 Allowable Building Frontages For Each Street Frontage
Key:
Building frontage permitted: ●
Building frontage not permitted: ○
Building frontage permitted beyond 150' from US Highway 1 only: ●
1
2.
Tables 3 through 8 summarize the regulations for each building frontage. Regulations that do not vary by building frontage type, such as permitted uses and building heights, are described throughout section 45-31.
Table 3 Building Frontage: GALLERY
Table 4 Building Frontage: STOREFRONT
Table 5 Building Frontage: FORECOURT
Table 6 Building Frontage: STOOP
Table 7 Building Frontage: CANOPY
Table 8 Building Frontage: LOBBY
E.
Site and bulk standards.
1.
Setbacks and build-to zones.
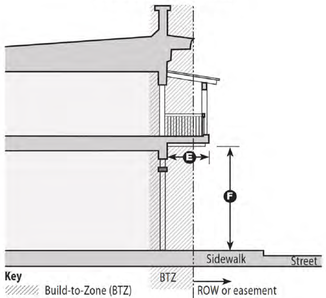
a.
Setbacks. Minimum setbacks between buildings and side, rear and Local Street front lot lines are illustrated on Figure 5 and established as follows:
i)
Side setbacks ("A") are zero (0) feet.
ii)
Rear setbacks ("B") are zero (0) feet (measured from the new easement for lots located along alleys). If the village is legally required, through the application of state law or otherwise, to approve buildings in excess of the maximum permitted height within C-MU district, all buildings or portions thereof of six (6) stories or more shall be set back at least seventy-five (75) feet from the new easement for lots located along alleys or from the rear property line, as applicable. An additional ten (10) foot setback shall be required for each story or portion thereof above six (6) stories. These setbacks shall apply wherever height limitations are depicted on the regulating plan (figures 1 through 4).
iii)
Local Street front setbacks ("C") are fifteen (15) feet.
b.
Build-to zone. A build-to zone is specified for each frontage type; see Tables 3 through 8. The build-to zone is parallel to the street frontage and is measured from the front lot line, except along US Highway 1 where it is measured from the new sidewalk easement which is required by subsection 45-31.G. Figure 5 shows build-to zones as "D" for mid-block lots and as "E" for corner lots and lots facing new streets. A portion of a building's facade that faces that street frontage must be placed within the specified build-to zone (see explanation in subsection 45-31.E.2).
i)
For properties facing New Streets as defined in subsection 45-31.G, build-to zones ("D" and "E") are measured from the outer edges of the new sidewalks (see Figure 12).
ii)
Allowable encroachments beyond the build-to zone are specified in subsection 45-31.F.3.
iii)
For properties facing Local Streets, the front setback ("C") shall be observed instead of the build-to zone.
Figure 5 Setbacks and Build-To Zones
2.
Building frontage standards. The portion of a new building's façade that is located in the build-to zone is called the building frontage. The width of the building frontage must comply with the building frontage percentage standards for each building frontage type (see Tables 3 through 8).
a.
Building frontage percentages are calculated by dividing the width of a building or buildings lying within the build-to zone (A) by the width of the lot along the same street frontage (B), as shown in Figure 6.
b.
Minimum building frontage percentages are specified for each building frontage type in Tables 3 through 8.
i)
If two (2) building frontage types are used on a wide street frontage, the specified percentages are measured for each type.
ii)
When buildings are being added or expanded, waivers may be requested in response to specific site limitations.
c.
For certain architectural features described in this Code, a portion of a building's facade that lies outside the build-to zone may be counted as building frontage. Examples are forecourts or lobby entrances that comply with the standards in Tables 5 or 8.
d.
For properties with multiple street frontages, see Figure 5.
Figure 6 Building Frontage Percentages
3.
Density. Residential density in the C-MU zoning district may not exceed twenty-four (24) units per acre. The acreage in this formula is the total area enclosed by the lot lines of the site being developed, including existing easements and including any land being dedicated for additional right-of-way or easements. The residential density of a mixed-use development in the C-MU zoning district shall be increased from twenty-four (24) to thirty-six (36) units per acre provided a development is consistent with the workforce housing density bonus granted by Policy 1.B.2 in the Comprehensive Plan.
4.
Building height.
a.
Buildings may be up to four (4) stories tall in the C-MU zoning district, except that:
i)
Within twenty-five (25) feet of the rear property line, no portion of a building may exceed two (2) stories.
ii)
Within fifty (50) feet of the rear property line, no portion of a building may exceed three (3) stories.
iii)
The 25-foot and 50-foot restrictions are depicted on the regulating plan.
iv)
A waiver to allow five (5) stories rather than four (4) stories may be requested on land north of Anchorage Drive North only.
b.
For the purpose of calculating the number of stories in a building, stories shall be defined as the space between finished floor and finished ceiling, adjusted as follows:
i)
Each level devoted to parking is considered as individual story when calculating the number of stories in a building, except where parking levels are screened by other rooms in the same building or screened by a liner building that is at least two (2) stories tall with rooms at least twenty (20) feet deep.
ii)
When parking levels are constructed on a slope or are connected by sloping or circular ramps, the number of stories will be based on the non-sloped area. If there are no non-sloped areas, the number of stories will be counted as the highest parking level plus each parking level below.
iii)
A mezzanine will not count towards the number of stories provided that the total area of mezzanine level is less than forty (40) percent of the floor area of the main story below.
iv)
Buildings may include a partial story above the maximum number of stories otherwise allowed provided the floor area of the partial story is less than 30% of the floor area of the story below. Developers are encouraged to utilize this allowance on portions of buildings that are closest to street intersections and for architectural features such as towers or cupolas.
v)
Rooftop gardens, pools, restaurants or cocktail lounges are permitted. All rooftop facilities shall be sufficiently screened from the street and adjacent properties. Adequate trees, shrubs, or greenspace shall be provided on any active rooftop facility. Only portions of the rooftop that are enclosed will count as a partial building story. A waiver may be granted to allow a rooftop restaurant or cocktail lounge to exceed the 30% partial story allowance in 45-31(4)(b)(iv).
c.
The maximum height of a building in feet is controlled by the maximum ceiling heights for individual stories, as provided in subsection 45-31.E.5.
5.
Floor and ceiling height.
a.
This code provides standards for the elevation of certain ground-story floors and minimum/maximum dimensions for ceiling heights. Figure 7 and Table 9 illustrate how these standards are measured:
(i)
Floor elevations are measured from the existing or anticipated sidewalk to the top of the finished floor of the ground story.
(ii)
Ceiling heights are measured from the top of the finished floor to the underside of the tallest finished ceiling of each story; see exceptions in subsection b.
Figure 7 Floor and Ceiling Measurements
Table 9 Floor and Ceiling Standards
b.
Ceiling height exceptions. The minimum and maximum ceiling height standards in Table 9 do not apply in the following circumstances:
i)
A story in or under a building that is devoted to parking is counted as a story when calculating the number of stories in a building, but does not need to comply with the minimum or maximum ceiling heights in Table 9.
ii)
When the total area of mezzanine level is less than 40 percent of the floor area of the story below, the mezzanine level does not need to comply with the minimum ceiling heights in Table 9.
iii)
Individual rooms do not need to comply with the minimum or maximum ceiling heights in Table 9 provided that the remainder of that story complies with the minimum and maximum heights.
6.
Landscape standards.
a.
Landscaping required. Landscaping shall be required in the following areas as required by the village's landscaping requirements:
i)
Miscellaneous landscape elements, as required in section 45-88;
ii)
Off-street parking lots, as required in section 45-89;
iii)
Site perimeters, as required in section 45-90; and
iv)
Base of foundation, as required by section 45-91.
b.
Special requirements for C-MU zoning district. The village's landscaping requirements contain certain special requirements for the C-MU zoning district:
i)
Section 45-90 requires minimum buffer widths for site perimeters.
• These buffer widths do not apply in front of buildings that meet the standards for a gallery, storefront, or canopy building frontage type. See Table 45-90.
• Along US Highway 1, buffer strips in front yards may not be planted on a sidewalk easement. See section 45-34.1.G.
ii)
Section 45-91 requires landscaped areas around the base of foundations. This requirement does not apply in front of buildings that meet the standards for a gallery, storefront, or canopy building frontage type.
F.
Architectural features. Requirements are provided below for the location of a building's main entrance and the percentage of transparent openings on its façade. Allowances are then provided for certain architectural elements that may encroach into setbacks and build-to zones and in some cases over rights-of-way.
1.
Main entrance.
a.
A building's main entrance is its principal point of access for pedestrians. All buildings must have their main entrance facing a street frontage, or a courtyard or forecourt that is entered from a street frontage. Additional entrances are encouraged.
b.
Buildings fronting on two (2) streets must have a pedestrian entrance on both streets.
c.
Additional rules for storefront doors are provided in Table 4.
2.
Façade transparency.
a.
Transparency means the amount of transparent window glass or other openings in a building's facade along a street frontage, relative to the overall surface area of the facade. This ratio is expressed as a percentage and is calculated separately for the ground story of a facade and for each upper story.
b.
Building facades along a street frontage must meet the minimum façade transparency requirements in Table 10 to provide natural surveillance of sidewalks and streets, to provide interior daylight, and to allow clear views into storefronts.
c.
Façade transparency percentages are calculated for the area between the finished floor and finished ceiling of each story along each street frontage; see Figure 8. For the purposes of these measurements:
i)
Glazed windows and doors with tinted glass or applied films will be considered transparent if they transmit at least 50% of visible daylight.
ii)
The transparent area of windows and doors includes rails and stiles as well as muntin bars and other separators within primarily glazed areas; but the transparent area excludes outer solid areas such as jambs, sills, and trim.
Table 10 Facade Transparency Percentages
Figure 8
Calculating Façade Transparency
3.
Encroachments. Many architectural elements described in subsections 45-31.D and 45-31.F may project beyond the closest point to a property line where an exterior wall may be constructed. Table 11 identifies the allowable projections; the key column refers to Figure 5.
a.
On private property. These elements may project into side or rear setbacks and project forward beyond the build-to zone including onto sidewalk easements to the extent permitted by Table 11 provided this Code's requirements for each element are met.
b.
On public property. Some of these elements may also extend horizontally over a public right-of-way in accordance with those regulations to the extent permitted by Table 11 provided this Code's requirements for each element are met in addition to these general requirements:
i)
Must maintain at least ten (10) feet of vertical clearance.
ii)
Must meet any insurance or liability requirements established by the Village Attorney.
iii)
Must obtain prior approval from the responsible entity for any encroachment over a right-of-way not maintained by the village, such as US Highway 1.
c.
Sidewalk cafes with outdoor table service may be provided on public sidewalks when in compliance with all village codes.
Table 11 Encroachments
4.
Awnings.
a.
An awning is a flexible cover that projects outward from a building's exterior wall to shield a window, door, sidewalk, or other space below from the elements.
b.
To encourage the construction of awnings, awnings are allowed to project horizontally beyond the closest point to a property line where an exterior wall may be constructed, including over a public right-of-way. See subsection 45-31.F.3 for allowances and limitations on such encroachments. To qualify for these encroachments, the awning must meet the following requirements:
i)
The depth of the awning from the face of the building must be at least four (4) feet.
ii)
The height of the awning from the sidewalk to the underside of the awning must be at least ten (10) feet.
iii)
High-gloss or plasticized fabrics may not be used.
iv)
Awnings may not be back-lit.
Table 12 Awning Dimensions
5.
Balconies.
a.
A balcony is an unenclosed private open space that typically projects outward from a building's exterior wall.
b.
To encourage the construction of balconies, balconies are allowed to project horizontally beyond the closest point to a property line where an exterior wall may be constructed. Balconies in upper stories may also project horizontally over a public right-of-way. See subsection 45-31.F.3 for allowances and limitations on such encroachments. To qualify for these encroachments, the balcony must meet the requirements in Table 13.
Table 13 Balcony Dimensions
6.
Bay windows.
a.
A bay window creates interior space that projects outward from a building's exterior wall.
b.
To encourage the construction of bay windows, bay windows are allowed to project horizontally beyond the closest point to a property line where an exterior wall may be constructed. Bay windows in upper stories may also project horizontally over a public right-of-way. See subsection 45-31.F.3 for allowances and limitations on such encroachments. To qualify for these encroachments, the balcony must meet the requirements in Table 14.
Table 14 Bay Window Dimensions
G.
Street, alley, and easement standards.
1.
New streets. Landowners may choose to construct a new street between US Highway 1 and the alley in the areas designated on the regulating plan. The following standards apply to any such new streets:
a.
Cross-section. New streets shall be designed in accordance with Figure 12 and constructed by the developer concurrently with the development.
b.
Other design and construction standards. On subjects where Figure 12 does not provide design guidance, for instance driveway widths and curb radii at intersections, design shall be in accordance with NACTO's Urban Street Design Guide.
i)
Pavement, subgrade, drainage, and utilities must meet construction specifications of the Village of North Palm Beach.
ii)
The construction specifications for sidewalks in section 24-43 apply along new streets.
iii)
Street trees must be planted and maintained on both sides of new streets.
iv)
Where an Applicant demonstrates that an alternative street design achieves a better outcome, waivers may be granted from specific standards in Figure 12.
c.
Ownership and maintenance. New streets shall be owned and maintained privately unless another entity acceptable to the Village of North Palm Beach accepts this responsibility. Irrespective of ownership and maintenance, landowners must guarantee perpetual public access to new streets in a form suitable to the Village Attorney.
d.
Build-to zones. Build-to zones for buildings facing a new street will be determined in accordance with subsection 45-31.E.1 irrespective of the new street's ownership.
e.
Building frontage standards. Building frontage standards for buildings facing a new street will be determined in accordance with subsection 45-31.E.2.
2.
Existing alleys. The C-MU district is served by alleys on both sides of US Highway 1 that are essential for general circulation and for access for services. To protect and enhance these functions, the following standards apply during the development process to all properties that abut an existing alley:
a.
A 7-foot perpetual transportation and utility easement must be dedicated to the village along the alley, in a form acceptable to the Village Attorney.
b.
Setbacks for buildings along alleys are specified in subsection 45-31.E.1.
c.
Setbacks for surface parking along alleys are specified in Table 15 (subsection 45-31.H).
d.
The 5-foot landscaped strip required by section 45-90 must be planted and maintained adjoining the new easement.
e.
Refuse containers and other service or utility equipment must meet the same setbacks as for surface parking. Refuse container areas must be screened in accordance with section 45-88.
3.
Sidewalk easements. All properties in the C-MU district abut US Highway 1, a regional highway that also serves local travelers in vehicles, on foot or bike, or using public transit. To enhance non-vehicular travel along this corridor, the following standards apply during the development process:
a.
A 7-foot perpetual sidewalk easement must be dedicated to the village along the US Highway 1 frontage, in a form acceptable to the Village Attorney.
b.
This easement must be paved at the time of development to the same elevation as the adjoining sidewalk in accordance with the construction specifications in section 24-43.
c.
The landscape strip required by section 45-90 must be planted and maintained on the remainder of the property beyond the sidewalk easement, except that no trees are required in this strip.
H.
Parking standards.
1.
Location of parking lots. Surface parking lots must be set back from streets at least the distances provided in Table 15, as illustrated in Figure 13.
Figure 13 Setbacks for Surface Parking Lots
Table 15 Setbacks for Surface Parking Lots
2.
Parking space ratios. Properties will retain the existing parking ratios as of the date of adoption of the CMU District, which are listed in Table 16.B. In order for properties to be granted the mixed-use district parking ratios listed in 16.A, a property must be made considerably closer to the CMU requirements adopted in 2020, as outlined in Section 45-64 (4), or be an entirely new development. The ratios listed in Tables 16.A and 16.B establish the minimum number of on-site parking spaces unless adjusted as provided in subsection 3. Ratios based on square feet refer to the gross floor area.
Table 16.A Parking Space Ratios
1
Hotels with banquet or conference facilities, restaurants, or bars that are open
to the public shall provide a parking demand study and provide sufficient spaces for
visitors and employees.
2
;hg;A sufficient loading zone shall be provided to accommodate peak drop off and
pick up.
Table 16.B Parking Spaces Required
3.
Parking space adjustments. The number of on-site parking spaces calculated using Table 16a shall be adjusted under any one or more of the following circumstances:
a.
Mixed-use developments qualify for the shared-parking percentage reductions specified in Figure 14 provided the development includes at least 10% of its gross floor area in a second category on Figure 14 (residential, lodging, office, business, and civic/education uses).
b.
Each on-street parking space provided by the developer within ¼ mile of the on-site parking area will be counted as two (2) required parking spaces.
c.
No on-site parking spaces are required for an office, business, or civic/education use that occupies less than one thousand five hundred (1,500) square feet (up to three (3) such uses per acre).
d.
Up to half of the required spaces may be located up to five hundred (500) feet off-site in a dedicated or joint-use parking lot provided that permission to use those spaces is specified in a binding agreement that is reviewed and approved during the site plan and appearance review process.
e.
Restaurants may count each boat slip that is available to the public as one (1) parking space.
f.
Golf cart parking spaces may be counted as one (1) space, provided they meet the minimum dimensions of five (5) feet wide by ten (10) feet long. Up to ten (10) percent of a development's required parking spaces may be met by golf cart parking spaces.
f.
The required number of on-site parking spaces may also be reduced through the waiver process (see section 45-51) or may be increased by a special condition applied during the site plan and appearance review process (see sections 6-30-6-60).
g.
A deferred parking plan may be approved by the Village if a parking study is provided that demonstrates the need for parking is less than what is required by code, or the owner has demonstrated that an alternative means of access to the uses on the site justifies the deferral of the construction of a portion of the required parking spaces. The deferred parking plan shall:
i)
Be designed to contain sufficient space to meet the full parking requirements of the Code. The plan shall illustrate the layout for the full number of parking spaces, and shall designate which parking spaces are to be deferred.
ii)
Be designed so that the deferred parking spaces are not located in areas required for landscaping, buffer zones, or areas that would otherwise be unsuitable for parking spaces because of the physical characteristics of the land or other requirements of this Code.
4.
Physical standards for parking lots, driveways, and loading.
Figure 14 Shared Parking Reductions
a.
Physical standards for parking lots, driveways, and loading are provided in subsection 45-36.J.
b.
Parking lots shall be interconnected with adjoining properties where feasible. Connections help to minimize the number of driveways to US Highway 1 and to reduce unnecessary vehicular use of those driveways to reach adjoining properties.
i)
Prior to approval of new or reconfigured parking lots, landowners are required to make an irrevocable offer of cross-access to the adjacent parcel and must design and build their parking lot to accommodate cross-access.
ii)
When adjacent landowners seek approval of new or reconfigured parking lots, they will be required to reciprocate with a similar cross-access agreement and then must complete the physical connection.
iii)
Each landowner will control all rights to the use of their own parking spaces, but may choose to allow joint use of surplus parking spaces for a fee of their choosing or through private contracts with other parties.
c.
Excess driveways to US Highway 1 shall not be approved, and existing driveways shall be consolidated or eliminated wherever practicable.
i)
Driveways to US Highway No. 1 for two (2) adjacent, separately owned parcels should be located on their joint property line wherever possible.
ii)
On corner lots, driveways may be required to be located on the less-traveled street. In all cases, driveways may not be located closer than forty (40) feet to an intersection.
5.
Standards for parking garages. Parking spaces may be provided under or in buildings or in dedicated parking garages instead of being provided in uncovered surface parking lots. Such parking spaces need not comply with the minimum setbacks for surface parking lots. These parking spaces must be screened from view from all streets. Screening may be provided by rooms in the same building or with a liner building that is at least two (2) stories tall with rooms at least twenty (20) feet deep.
I.
Review procedures.
1.
Submittal and review procedures. Compliance with the standards of the C-MU district shall be evaluated during the site plan and appearance review process before building and other permits may be issued (see sections 6-30-6-60).
2.
Variances. Variances may be granted by the village to standards in the C-MU district using the same procedures and criteria the village uses in granting variances from other regulations (see section 45-50).
3.
Waivers. Waivers may be granted by the village to certain standards in the C-MU district in accordance with the applicable village procedures for granting waivers (see section 45-51), with these additional requirements:
a.
The waiver process in the C-MU district cannot be used to:
i)
Add uses that are not allowable under this Code.
ii)
Increase the allowable residential density.
iii)
Increase the allowable building height, except for the extra story that may be requested pursuant to 45-31.E.4.
b.
This additional finding must be made before the village approves a waiver in the C-MU district:
i)
The proposed waiver meets the intent of the Village of North Palm Beach Citizens' Master Plan Report, adopted by the village council on October 27, 2016, through Resolution 2016-73.
(Ord. No. 2020-06, § 15(Exh. 1), 9-24-20; Ord. No. 2023-09, § 2, 6-22-23)
Editor's note— Ord. No. 2020-06, § 15, adopted September 24, 2020, repealed § 45-31 and enacted a new § 45-31 as set out herein. Former § 45-31 pertained to C-A commercial district and derived from Ord. No. 10-72, § 1; Ord. No. 13-72, adopted July 13, 1972; Ord. No. 4-73; Ord. No. 10-73, § 6, adopted September 13, 1973; Ord. No. 22-82, §§ 2, 3, 9, adopted December 9, 1982; Ord. No. 23-90, § 2, adopted June 28, 1990; Ord. No. 46-96, § 1, adopted December 12, 1996; Ord. No. 27-99, §§ 1, 2, adopted August 12, 1999; and Ord. No. 2014-06, § 2, adopted July 24, 2014.
Editor's note— Section 45-31(K) entitled "Signs" was repealed by Ord. No. 13-72 enacted July 13, 1972. Sign regulations can be found in Chapter 6, Article V, of this Code.
Editor's note— Ord. No. 2020-06, § 16, adopted September 23, 2020, repealed § 45-31.1. Former § 45-31.1 pertained to C-B Commercial District and derived from Ord. No. 10-73, § 6, adopted September 13, 1973; Ord. No. 1-78, § 1, adopted February 9, 1978; Ord. No. 22-82, §§ 4, 5, 9, adopted December 9, 1982; Ord. No. 15-84, § 2, adopted July 12, 1984; Ord. No. 47-96, § 1, adopted December 12, 1996; Ord. No. 27-99, §§ 3, 4, adopted August 12, 1999; and Ord. No. 2014-06, § 2, adopted July 24, 2014.
Editor's note— Ord. No. 2020-06, § 17, adopted September 23, 2020, repealed § 45-32. Former § 45-32 pertained to C-1A Commercial District and derived from Ord. No. 10-72, § 2; Ord. No. 4-73; Ord. No. 10-73, § 7, adopted September 13, 1973; Ord. No. 14-74; Ord. No. 14-76, § 1, adopted July 8, 1976; Ord. No. 22-82, §§ 6, 7, 9, adopted December 9, 1982; Ord. No. 9-87, § 1, adopted May 28, 1987; Ord. No. 17-90, § 4, adopted June 28, 1990; Ord. No. 23-90, § 3, adopted June 28, 1990; Ord. No. 27-99, § 5, adopted August 12, 1999; Ord. No. 03-2001, §§ 1, 2, adopted February 8, 2001; Ord. No. 2006-06, § 1, adopted April 13, 2006; Ord. No. 2014-06, § 2, adopted July 24, 2014; and Ord. No. 2015-10, § 3, adopted June 11, 2015.
A.
General description. This residential/commercial transitional district is to provide for the development of low-intensity residential and business uses. The C-T district shall serve as a transition between strictly residential areas and intense commercial development.
B.
Uses permitted. The allowable uses in the C-T transitional commercial district are listed in Table 1 (in addition those specifically identified in the third column, uses not listed in the table are not permitted in the C-T district).
Table 1
1 Subject to the same requirements as apply in the R-2 zoning district.
C.
Conditions for permitted uses:
1.
All activities, sales and storage of goods must be conducted entirely within completely enclosed buildings with permanent nonmoving outside walls.
2.
No outside sidewalk of parking lot storage (or) display of merchandise will be permitted.
3.
No manufacturing or production of products for retail or wholesale will be permitted.
D.
Building height regulations. No building or structure shall exceed two (2) stories or twenty five (25) feet.
E.
Building site area regulations: Maximum floor-area-ratio: 0.70.
F.
Yards.
1.
Front yards.
(a)
All buildings shall be constructed from the Alternate A-I-A or Prosperity Farms Road right-of-way to provide a front yard of not less than twenty (20) feet.
(b)
All buildings shall be set back from the right-of-way of streets which intersect with Alternate A-I-A or Prosperity Farms Road providing a yard of not less than ten (10) feet.
(c)
The ground story of each building facade that faces a front yard must have at least 15% of its surface area in transparent glass that will transmit at least 50% of visible daylight.
2.
Side and rear yards. All buildings shall be set back from side and rear lot lines so as to provide side and rear yards of not less than:
(a)
Ten (10) feet when abutting a lot with residential zoning.
(b)
Zero (0) feet when abutting a lot with commercial or mixed-use zoning.
G.
Off-street parking regulations. Off-street parking shall be provided at half of the number of parking spaces required in:
1.
The C-S zoning district for commercial uses; and
2.
The R-2 zoning district for residential uses.
H.
Off-street parking layout, construction and maintenance shall be as provided in section 45-36.J.
I.
Landscape standards. Landscaping shall be required in the following areas as required by the village's landscaping requirements:
1.
Miscellaneous landscape elements, as required in section 45-88;
2.
Off-street parking lots, as required in section 45-89;
3.
Site perimeters, as required in section 45-90, except that no perimeter landscaping is required along a lot line that abuts commercial zoning; and
4.
Base of foundation, as required by section 45-91.
(Ord. No. 31-97, § 1(Exhibit A), 7-10-97; Ord. No. 23-99, § 1, 6-10-99; Ord. No. 15-2000, § 1, 5-25-00; Ord. No. 2020-06, § 18(Exh. 2), 9-24-20; Ord. No. 2025-10, § 2, 6-12-25)
Editor's note— Ord. No. 2020-06, § 18, adopted September 24, 2020, renamed § 45-32.1 from "C-C transitional commercial district" to "C-T transitional commercial district."
General description. This shopping district is established to provide that the principal use of land is devoted to community and neighborhood shopping and to tourism-related uses and to encourage the development of these locations for such uses and in such manner as to minimize congestion and interference with other land uses.
A.
Uses permitted. Within any C-S district, no building, structure, land or water shall be used, except for one (1) or more of the following uses:
1.
Reserved.
2.
Any retail business or commercial use including neighborhood commercial use that meets the daily living needs of village residents and which does not involve the manufacturing or processing of products; provided, however, automobile repair shops are not a permitted use except as an accessory use to an automotive service station or retail automobile tire store.
3.
Transient commercial uses serving either the motoring public or village residents including hotels and motels, conference and retreat facilities, filling stations, sale of convenience goods, and restaurants.
4.
Personal service establishments, including, but not limited to, banks, barbershops, bowling alleys, beauty salons, medical and dental clinics, professional and other offices, funeral homes, shoe repair shops, laundry pickup stations and self-service laundries, furniture display stores and drugstores.
5.
Mobile home park.
6.
Adult entertainment establishments.
7.
Religious worship or related religious activities.
8.
Limited access self-storage facilities are defined as a fully enclosed structure for indoor storage with a minimal amount of access points from the exterior of the building. These exterior access points provide access to interior hallways that directly serve individual storage units rented to the public. No direct access from the exterior of the building to an individual storage unit is permitted.
9.
Dog daycare, as defined and regulated in the I-1 zoning district.
10.
Restaurants and cocktail lounges.
11.
Nursery and private schools.
12.
Marinas and their accessory uses such as wet boat storage facilities, indoor dry boat storage facilities, gasoline supplies and such minor repair facilities as are incidental to boat storage and which do not involve major boat and/or engine overhaul.
13.
Multiple-family dwelling structures as a component of a commercial planned unit development containing a commercial component including retail and non-retail commercial facing a primary street frontage with a depth to be determined by the village council.
B.
Building height regulations. For buildings in excess of two (2) stories or thirty (30) feet in height, five (5) feet shall be added to the required front-yard setback for each story in excess of two (2) or in excess of thirty (30) feet in height. No structures however, shall occupy more than thirty-five (35) percent of the site area so required.
C.
Building and floor area regulations. An individual retail business or commercial use shall not exceed fifty thousand (50,000) square feet of floor area on the first floor; this provision shall not apply to grocery stores; food stores or facilities for use for religious worship or related religious uses including retreats, conferences, school or other educational uses, convent, rectory or other living facilities, administration or similar facilities owed or operated by religious groups or religious-related activities.
D.
Yard space regulations. There shall be a front yard of not less than fifty (50) feet measured from the street line to the front building line, except along both sides of U.S. 1, no setback less than one hundred (100) feet in depth measured from the front building line shall be provided.
For a distance of one (1) block on streets intersecting U.S. 1, measured from the right-of-way line of said U.S. 1, side yards of at least twenty-five (25) feet in depth shall be provided.
(a)
For single-family and for multiple-family residential structures, there shall be rear yard and side yard setbacks the same as set forth in the R-1 and R-3 zoning districts, respectively, except as modified below:
(i)
On corner lots intersecting U.S. Highway No. 1 where the front of the building is on the intersecting street and the side yard of the building is on U.S. Highway No. 1, the minimum side yard setback on U.S. Highway No. 1 shall be one hundred (100) feet measured from the street line to the side building line, and only for structures in excess of twenty (20) stories in height shall five (5) feet be added to the required side yard for each story added to the building in excess of twenty (20).
(ii)
On lots bordering the established bulkhead line, the Intracoastal Waterway line or any existing bulkhead, the maximum required rear yard and side yard setbacks shall be twenty (20) feet from the established bulkhead line, Intracoastal Waterway line or existing bulkhead, whichever is closest in distance to the building line; provided, however, that said bulkhead line, Intracoastal Waterway line or existing bulkhead is at least five hundred (500) feet from the opposite bulkhead line, Intracoastal Waterway line or existing bulkhead, whichever is closest.
All other space regulations shall apply to such buildings.
E.
Off-street parking regulations.
1.
Reserved.
2.
For general business, commercial or personal service establishments, one (1) space for each two hundred (200) square feet of nonstorage first floor area, plus one (1) space for each two hundred (200) square feet of nonstorage area above the first floor.
3.
Medical or dental offices or clinics, one (1) space for each one hundred fifty (150) square feet of floor area, up to three thousand (3,000) square feet; one (1) additional space for each additional two hundred (200) square feet of floor area up to five thousand (5,000) square feet; one (1) additional space for each additional two hundred fifty (250) square feet of floor space in excess of five thousand (5,000) square feet.
4.
Offices, one (1) space for each three hundred (300) square feet of floor area used for office purposes.
5.
Schools and public buildings, one (1) space for each four (4) seats in the main auditorium or place of assembly.
6.
Theaters, auditoriums, one (1) space for each four (4) seats.
7.
No parking shall be permitted in the first ten (10) feet of the required front yard depth, measured from the front property line. The restriction against parking in the first ten (10) feet of the required front yard depth measured from the front property line shall not apply to those properties which have complied in full with the landscaping provisions of this Code.
8.
Furniture display stores, one (1) space for each four hundred (400) square feet of sales area.
9.
Retail business with floor area in excess of fifty thousand (50,000) square feet, one (1) space for each two hundred fifty (250) square feet of non-storage floor area.
10.
Limited access self-storage facilities, one (1) space for each two hundred (200) storage units plus five (5) customer parking spaces.
11.
Marinas:
i)
One (1) space for every two (2) wet boat slips.
ii)
One (1) space for every six (6) dry boat slips.
12.
Motels and hotels, one (1) space for each guest bedroom, plus one (1) additional space for each five (5) employees.
13.
Churches, the same as for the R-2 multiple-family dwelling district.
14.
Restaurants, one (1) space for each seventy-five (75) square feet of floor area devoted to patron use, or one (1) space per three (3) fixed seats, whichever is the greater, and one (1) space for each one and one-half (1½) projected employees who would be actually working during peak employment hours.
F.
Floor area regulations.
1.
Reserved.
2.
In time-share structures, each dwelling unit having one (1) bedroom shall have a minimum floor area of seven hundred fifty (750) square feet. An additional one hundred fifty (150) square feet of floor area shall be required for each additional bedroom provided.
G.
Conditions for permitted uses:
1.
A car wash and car waxing business whether in conjunction with a filling station or as an independent enterprise shall be allowed to utilize an awning structure or structure which shall be located in the rear yard with a minimum five-foot setback and within the building side lines extended.
2.
All activities, sales and storage of goods must be conducted entirely within completely enclosed buildings with permanent nonmoving outside walls. The following exceptions apply:
i)
Restaurants that qualify under outdoor seating provisions of Appendix C—Zoning.
ii)
Marinas with enclosed new boat retail display area may utilize outdoor rear and side yard site area for ground level new boat storage, rigging, minor repair and display subject to the following conditions:
a.
Outdoor storage, rigging, minor repair and display areas shall be completely screened from the view of the street right-of-way and adjacent properties with an opaque wall or fence to a height of six (6) feet.
b.
The area of outdoor storage, rigging and display area shall not exceed the enclosed retail display floor area, including retail display area office space, or fifteen (15) percent of the total site area, whichever is less.
iii)
Outdoor runs/dog exercise areas which are accessory to veterinary clinics. All such outdoor runs/dog exercise areas shall comply with the requirements of Section 45-38.D.12.d of this Code.
3.
No outside sidewalk or parking lot storage or display of merchandise will be permitted.
4.
Limited access self-storage facilities shall only be allowed on properties within commercial planned unit developments and accompanied by the following conditions:
i)
All exterior service doors must be not visible from any public street or adjacent property.
ii)
All buildings must be a maximum of two (2) stories with architectural treatment to reflect the actual number of stories.
iii)
No blank walls shall be permitted.
iv)
A mix of uses must be provided that includes a minimum of ten (10) percent Gross Floor Area (GFA) retail or professional office (excluding the on-site management office for the self-storage facility).
v)
A minimum of one thousand (1,000) feet separation from property line to the closest adjacent property line shall be required between limited access self-storage facilities.
5.
All new marinas and major improvements to existing marinas shall provide sewage pump-out service to boats seven (7) meters (twenty-two and ninety-seven hundredths (22.97) feet) in length or more. Major improvements include adding wet or dry boat slips; constructing new buildings; adding or expanding fueling facilities, and other improvements of a comparable scale as determined by the community development
(Ord. No. 20-72, § 1; Ord. No. 4-73; Ord. No. 10-73, §§ 8, 9, 9-13-73; Ord. No. 22-82, §§ 8, 9, 12-9-82; Ord. No. 9-87, § 2, 5-28-87; Ord. No. 23-90, § 4, 6-28-90; Ord. No. 7-94, § 1, 4-14-94; Ord. No. 1-95, § 1, 1-12-95; Ord. No. 24-95, § 1, 7-17-95; Ord. No. 48-96, § 1, 12-12-96; Ord. No. 1-98, §§ 1—7, 1-8-98; Ord. No. 27-99, § 6, 8-12-99; Ord. No. 26-2002, §§ 1—3, 9-26-02; Ord. No. 2014-05, § 2, 6-26-14; Ord. No. 2020-06, § 19(Exh. 3), 9-24-20)
Editor's note— Ord. No. 2020-06, § 19, adopted September 24, 2020, renamed § 45-33 from "C-1 neighborhood commercial district" to "C-S shopping commercial district."
A.
Uses permitted. Within any C-G district, no building structure, land or water shall be used, except for one (1) or more of the following uses:
1.
Any use permitted in the C-S district.
2.
Any retail business or commercial use which does not involve the manufacturing or processing of products.
3.
Personal service establishments, including, but not limited to, banks, barbershops, bowling alleys, beauty salons, medical and dental clinics, professional and other offices, funeral homes, filling stations, shoe repair shops, laundry pickup stations and self service laundries, furniture display stores and drugstores.
4.
Full service automotive dealerships and accessory uses including paint and body shops, repair shops and garages, limousine service and towing service.
5.
Retail and wholesale sales of new vehicular parts, equipment and accessories without on-site installation.
6.
Automobile service shops such as full service vehicle repair shops, muffler shops, tire shops, lubrication and oil change, window tinting, wash and detailing.
7.
Automobile, truck and trailer rental business.
8.
Adult entertainment establishment.
9.
Limited Access Self Storage Facilities, which are defined as a fully enclosed structure for the purpose of indoor storage, with a minimal amount of access points from the exterior of the building. These exterior access points provide access to interior hallways that directly serve individual storage units rented to the public. No direct access from the exterior of the building to an individual storage unit is permitted.
B.
Development standards. Every commercial use located within the C-G district shall be so developed as to comply with the following performance standards:
1.
Outside display: Outside display areas for sale, lease or rental of vehicles shall be designed as follows:
(a)
Vehicles may be stored on an approved parking surface without reference to parking stalls, stall striping or wheel stops. This type of parking shall be allowed only pursuant to a site plan and appearance review and approval subject to Article III of Chapter 6 of the Village Code of Ordinances.
(b)
Interior landscaping requirements within outside display areas pursuant to Article VIII of this chapter shall be met by transferring the required landscaping to the perimeter of the site abutting public rights-of-way. The transferred landscaped areas shall be designed and located so as to mitigate and buffer the impact of the aggregated vehicle storage area.
2.
Locational and physical restrictions:
(a)
Repair facilities and paint and body shops shall be located at least one hundred (100) feet from any residentially-zoned lot. Service bay doors shall not be oriented toward any adjacent residentially-zoned property nor oriented toward any adjacent public street.
(b)
Accessory fuel pump islands and automated wash facilities for vehicles shall not be located within one hundred (100) feet of any residentially-zoned property. Wash facilities shall be located within a completely enclosed building. Fuel pump islands shall be located within an enclosed area so that they are not visible off premises.
(c)
The sale, lease or rental of automobiles, trucks, motorcycles, and recreational vehicles is allowed only on lots which meet the following minimum dimensions and area:
(1)
Minimum frontage of one hundred twenty five (125) feet.
(2)
Minimum width of one hundred twenty five (125) feet.
(3)
Minimum depth of two hundred (200) feet.
(4)
Minimum area of one and one-half (1.5) acres.
3.
Limited access self-storage facilities shall be accompanied by the following conditions:
(a)
All exterior service doors must not be visible from any public street or adjacent property.
(b)
The architectural treatment of all buildings must reflect the actual number of stories.
(c)
No blank walls shall be permitted.
(d)
A mix of uses must be provided that includes a minimum of ten percent (10%) Gross Floor Area (GFA) retail or professional office (excluding the on-site management office for the self-storage facility).
(e)
A minimum of one thousand (1,000) feet separation from property line to the closest adjacent property line shall be required between limited access self-storage facilities.
C.
Use and operating restrictions. Every commercial use located within the C-G district shall be so operated as to comply with the following performance standards:
1.
No industrial equipment or vehicles shall be sold, leased, rented or otherwise stored within the C-G district. For purposes herein, industrial equipment is defined as equipment used primarily for purposes other than transportation or hauling. Trucks other than pickup trucks, vans and jeeps shall be displayed in areas separated from a public right-of-way by a building.
2.
No vehicle shall be parked for display purposes with its hood or trunk open, nor elevated off the ground in any way. Vehicles shall not be parked in any right-of-way or driveway.
3.
Advertising, flags, pennants, streamers, balloons, signs or vehicle stock numbers shall not be displayed on any vehicle or equipment. Similar objects or advertising designed to attract the public's attention shall not be displayed outdoors on any lot, building, vehicle or equipment.
4.
Any areas designated for the off-loading of vehicles or for loading and deliveries shall be located to the rear of buildings and shall be located so as to contain noise on-site. These areas shall not be located closer than one hundred (100) feet from any residentially-zoned lot and shall be appropriately designated, marked and signed.
5.
Dealers are prohibited from using streets in a residential zone for the testing of vehicles after servicing and for the demonstration of vehicles.
6.
Exterior lighting fixtures shall not exceed twenty-five (25) feet in height; shall be directed away from adjacent properties; shall confine light to the site only; and shall not exceed when measured at any property line, the following illumination:
(a)
One hundred (100) foot-candles within display areas.
(b)
Forty (40) foot-candles within all areas.
(c)
After 11:00 p.m., the illumination in display areas shall be reduced to fifty (50) foot-candles.
7.
No outdoor speakers or public address systems that are audible from the exterior of the site shall be permitted.
8.
Customer parking shall be marked with an above grade sign and shall be physically separated from the vehicle sales, storage and display area. This barrier may be in the form of a landscape strip, curbing or removable bollards.
9.
The height of buildings, the site area of buildings, yard spaces, and floor area regulations in the C-G district shall be the same as required in the C-S district, with the following exception: Limited access self-storage facilities shall be limited to a maximum of three (3) stories in height.
10.
With the following exceptions, off-street parking regulations shall be the same as for the C-S district:
(a)
Full-service automotive dealerships, Customer and employee parking requirements; One (1) space for each five hundred (500) square feet enclosed floor area, plus one (1) space per each four thousand five hundred (4,500) square feet of outdoor sales display and rental area, plus one (1) space per service bay, plus one (1) space per employee of the shift of largest employment. Parking for vehicle storage, sales or display may not be counted toward meeting the number of required off-street parking spaces or to be provided for customers and employees.
(b)
Limited access self-storage facilities, one (1) space for each two hundred (200) storage units plus five (5) customer parking spaces.
(Ord. No. 32-97, § 1, 7-10-97; Ord. No. 18-98, § 1, 8-13-98; Ord. No. 14-2004, §§ 1—3, 7-8-04; Ord. No. 2020-06, § 20(Exh. 4), 9-24-20)
Editor's note— Ord. No. 2020-06, § 20, adopted September 24, 2020, renamed § 45-34 from "commercial district" to "C-G general commercial district."
The C-3 regional business district is designed for the re-use and/or redevelopment of commercial property. It contains special regulations and procedures that are integrated with those of the Town of Lake Park to avoid conflicts that could otherwise be created by the location of the town/village boundary. Within C-3 business districts, the following regulations shall apply:
(1)
Uses permitted. Table 1 indicates allowable uses in the C-3 regional business district:
Table 1 - Allowable Uses
1 See section 10 for additional PUD requirements
2 Subject to the same requirements as apply in the R-2 zoning district
(2)
Off-street parking. All proposed land uses shall provide a sufficient number of parking spaces to accommodate the number of vehicles that can be expected to be attracted to that use. Individual land uses can provide at least the number of spaces listed below on the same parcel of land as the principal building (or on an adjoining parcel under identical ownership) in lieu of using the parking space standards found elsewhere in this Code. However, certain land uses may require less parking; and combinations of land uses may be able to reduce the total number of spaces by sharing those spaces during differing peak hours or because of pedestrian traffic or multi-purpose trips. Modified standards may be approved if fewer spaces will accommodate the number of vehicles that can be expected to be attracted to that use (or combination of uses) at the proposed location. Such a modification may be made on individual parcels of land (or adjoining parcels under identical ownership) by the building official when permitted by consensus national codes or standards or after submission of persuasive technical evidence (such as publications of the Institute of Transportation Engineers (ITE)). Modifications that involve shared parking on parcels of land that are not under identical ownership, or parking in a different municipality than the principal building regardless of ownership, may be approved through the special C-3 PUD procedures found below in section 45-34.1(10).
a.
Auditoriums of any kind — One (1) space per three (3) seats.
b.
Banks and other financial institutions — Three (3) spaces per one thousand (1,000) square feet.
c.
Hotels and motels — One (1) space per guest room plus one (1) space per two (2) employees during the peak period; parking for restaurants and other guest facilities to be calculated separately.
d.
Offices, medical/dental — Five (5) spaces per one thousand (1,000) square feet.
e.
Offices, all other — Three (3) spaces per one thousand (1,000) square feet.
f.
Residential — Two (2) spaces per dwelling unit.
g.
Restaurants and nightclubs — Twelve (12) spaces per one thousand (1,000) square feet, except six (6) spaces per one thousand (1,000) square feet for restaurants offering take-out service.
h.
Retail uses and personal services — Four (4) spaces per one thousand (1,000) square feet, except one and one-half (1.5) spaces per one thousand (1,000) square feet for furniture sales.
i.
Shopping centers — Four (4) spaces per one thousand (1,000) square feet.
j.
Uses not listed above to be determined by the building official using standards found elsewhere in this Code or upon submission of persuasive technical evidence about the number of vehicles that can be expected to be attracted.
NOTES:
1.
All areas are measured as gross floor area except multi-tenant shopping centers and office complexes, which are measured as gross leasable area.
2.
Fractional spaces can be disregarded.
3.
Wherever the term "identical ownership" is used, the land parcels in question must be contiguous and must be owned by or under the unified control of the applicant.
(3)
Off-street loading and internal circulation. Requirements for off-street loading, parking lot aisles, accessways, and general internal circulation shall be same as would apply in the C-S zoning district.
a.
Lighting: Parking lots shall be fully illuminated during hours of business operation with a minimum standard of illumination from closing to dawn per the Palm Beach County Code or ITE, whichever is more stringent.
(4)
Landscaping. Landscaping shall be required along the outer boundary of the C-3 zoning district (irrespective of any municipal boundary) and also in unroofed parking areas whenever a parking area is constructed, reconstructed, or reconfigured. In addition to the other provisions of chapter 27 of this Code, the following landscaping requirements shall be met:
a.
Required landscaping adjacent to public rights-of-way: The required landscaped strip between a public right-of-way and an off-street parking area shall be at least fifteen (15) feet wide and shall contain at least five (5) shade trees and eighteen (18) shrubs for each one hundred (100) lineal feet.
b.
Parking area interior landscaping for unroofed parking areas: At least ten (10) percent of the total paved surface area shall be devoted to landscaped areas. Each area counting toward the ten (10) percent total shall have an average minimum dimension of ten (10) square feet. At least one (1) shade tree shall be planted for every two hundred fifty (250) square feet of required internal planting area. No parking space shall be more than one hundred (100) feet from a shade tree planted in a permeable island, peninsula, or median having a ten-foot minimum width.
c.
Indigenous native vegetation: To reduce maintenance and water consumption, required landscaping shall include at least seventy-five (75) percent indigenous native trees and fifty (50) percent indigenous native shrubs.
d.
Installation: All required landscaping shall be installed using xeriscape principles including water conservation through the appropriate use of drought-tolerant plants, mulching, and the reduction of turn areas. Irrigation systems shall be designed to operate only when needed and only in those areas that require irrigation.
e.
Maintenance: The property owner shall be responsible for the maintenance of all required landscaped areas in a healthy and vigorous condition at all times. Required trees shall not be trimmed or pruned in such a way as to alter or limit their normal mature height or crown spread. If required plants die, they shall be replaced within sixty (60) days.
(5)
Setbacks and height. The following setback, height, and spacing regulations apply in the C-3 zoning district:
a.
Perimeter setbacks: All buildings and structures shall be set back a minimum of thirty (30) feet from the outer boundary of the C-3 zoning district, except an interior common municipal boundary. For buildings in excess of two (2) stories or thirty (30) feet in height, one (1) foot shall be added to the required perimeter setback for each extra foot of height over thirty (30) feet.
b.
Additional setbacks to internal property lines: The need for building setbacks to property lines adjoining other land zoned C-3 is related to the existing or proposed uses of those properties. Unless modified through the special C-3 PUD procedures found below in section 45-34.1(10), all new buildings and structures shall be set back a minimum of twenty-five (25) feet from each of its property lines.
c.
Maximum building height: The maximum height of any building shall be fifty (50) feet.
d.
Spacing between buildings: The minimum spacing between individual buildings on the same or adjoining C-3 properties shall be as required by applicable fire and building codes.
(6)
Maximum lot coverage. There is no fixed cap on lot coverage or floor area ratio. Maximum intensity will be governed by the application of the parking, loading, setback, building height, and surface water management standards found herein.
(7)
Signs. In addition to the other provisions of sections 6-111 through 6-117 of this Code, but notwithstanding any conflicting standards found therein, signs in the C-3 zoning district shall comply with the following regulations unless modified through the special C-3 PUD procedures.
a.
Ground signs are mounted on a monolithic base and are independent of any building for support. They are permitted only when the sign and base are monolithic and have essentially the same contour from grade to top. Ground signs that meet the following regulations are permitted in the C-3 district only along U.S. Route 1 and Northlake Boulevard:
1.
Maximum number of ground signs: One (1) ground sign along U.S. Route 1 and one (1) ground sign along Northlake Boulevard, regardless of jurisdiction, North Palm Beach or Lake Park.
2.
Maximum height of ground sign base: Three (3) feet.
3.
Maximum height of ground signs: Thirteen (13) feet including the base, measured from the finished grade nearest the base (excluding berms).
4.
Maximum size of ground signs: One hundred (100) square feet; copy may be placed on two (2) sides of a ground sign without counting the area twice.
b.
Pole signs are not attached to any building and are supported upon the ground by poles or braces. Pole signs are not permitted in the C-3 district.
c.
Wall signs are those that are attached to the exterior of a building or structure in such a manner that the wall becomes the supporting structure, and may form the background surface, of the sign. Wall signs are permitted in the C-3 district provided they meet the following regulations:
1.
Maximum depth of wall signs: Wall signs may not be painted directly on the wall and may not project more than two (2) feet from the building to which they are fastened.
2.
Allowable slope of wall signs: Wall signs may not be attached to walls that slope more than forty-five (45) degrees from a vertical plane.
3.
Maximum height of wall signs: Eighteen (18) feet measured from the finished grade nearest the wall, except that on a building of more than two (2) stories, a single wall sign is allowed above eighteen (18) feet. No wall sign may extend above the top of the wall to which it is attached.
4.
Maximum number of wall signs: One (1) permanent wall sign is permitted for each business which has direct ground level walk-in access from a public or private roadway or sidewalk, and one (1) additional permanent wall sign identifying the building is permitted for each multiple occupancy complex.
5.
Maximum size of wall signs: Five (5) percent of the area of the wall to which it is attached; or seven (7) percent if the front building setback is greater than seventy (70) feet; or ten (10) percent if the front building setback is greater than one hundred (100) feet. However, in no case shall a wall sign exceed one hundred (100) square feet in size.
d.
Roof signs are erected and constructed wholly on and over the roof of a building, and are supported by the roof structure or are an integral part of the roof. Roof signs are not permitted in the C-3 district.
e.
Size computations: When these regulations establish the maximum size of a sign, it shall be computed by means of the smallest square, circle, rectangle, triangle, or combination thereof that will encompass the extreme limits of the writing, representation, emblem, or other display, together with any material or color forming an integral part of the background of the display or used to differentiate the sign any backdrop or structure against which it is placed.
f.
Allowable colors: Notwithstanding the regulations in chapter 6 of this Code, color tones utilized for all signs complying with these regulations shall be compatible with surrounding area.
g.
Lighting: Signs containing illumination shall be turned off by 12:00 a.m. (midnight) each night, or when the business closes, whichever is later.
h.
Appeals: Notwithstanding conflicting appeal procedures found elsewhere in this Code, all requests for modifications to sign regulations in the C-3 zoning district shall be made through the special C-3 PUD procedures found below in 45-34.1(10).
(8)
Surface water management. A complete surface water management system shall be provided to current standards of the South Florida Water Management District whenever a building or parking area is substantially redeveloped.
(9)
Location of business for retail sales of alcoholic beverages.
a.
No licensed retail sales of alcoholic beverages shall be carried on where the proposed place of business is within five hundred (500) feet of a church, synagogue, temple or other place of worship.
b.
The method of measurement provided for above shall be made or taken from the main front entrance of such church to the main front entrance of the applicants proposed place of business along the route of ordinary pedestrian traffic.
c.
The restrictions of section 45-34.1(9), (1)[a.] shall not apply to the retail sale of beer, ale or wine for off-premises consumption.
d.
The restrictions of section 45-34.1(9), (1)[a.] shall not apply to any bona fide restaurant as defined and licensed under Florida Statutes as a restaurant with full kitchen facilities, regardless of size or seating capacity, where alcoholic beverages are served solely as an accessory use to the restaurant and only when such restaurant is open for the sale and service of food.
(10)
Special C-3 planned unit development (PUD) provisions. It is the intention of the village to provide a mechanism and process to promote the redevelopment of the obsolete and underutilized areas of the C-3 zoning district with large-scale, master-planned projects that promote: a mix of uses; connectivity; pedestrian-oriented development; removal of surface parking; creation of public/civic gathering spaces; and shopping, entertainment, and restaurant uses within the form of an urban neighborhood incorporating residential development as an integral use. These projects promote the economic and redevelopment goals of the village, and the village has created these planned unit development (PUD) provisions to facilitate these goals. The development regulations applicable within the PUD are not permitted or allowed by right and shall only apply if the village council determines that each of the threshold criteria is met. Properties located in the C-3 zoning district that do not meet the threshold criteria set forth below may utilize the general PUD provisions of section 45-35.1 of this code as set forth in section 45-35.1(D). Properties located in the C-3 zoning district that do meet each of the threshold criteria below may, at the option of the property owner, utilize the following special PUD regulations:
a.
The threshold criteria for use of these special provisions are as follows:
1.
The development parcel includes a minimum of at least five (5) contiguous acres of land that will be initially reviewed and approved as one (1) overall development project. Any subsequent amendments to such plan or individual phases of such plan shall also be subject to these special provisions.
2.
The project provides a minimum of one-half (½) acre for a civic space within the project site. "Civic space" shall be defined as an open space that is dedicated for public use including all adjacent pedestrian amenities. The civic space may include, parks, plazas, courtyards, playgrounds, or similar uses. The civic space may be owned, maintained and/or operated either publicly or privately. The civic space may be reconfigured or relocated from the orientation shown on the regulating plan. Civic space provided pursuant to this subsection shall be credited towards the public sites and open spaces requirements of section 36-23 of this Code.
3.
To achieve a mixed-use project, a minimum of fifty thousand (50,000) square feet of the total project development shall be allocated to non-residential uses.
4.
The project provides additional public benefits in the form of enhanced landscaping over and above code requirements; enhanced pedestrian amenities (such as awnings canopies, outdoor art, or seating areas); the creation of functional living, shopping and/or working environments; or innovative architectural design. The village council reserves the right to approve alternate public benefits.
b.
Allowable changes to existing regulations: No PUD approval can permit any development that is inconsistent with the comprehensive plan. Subject to this limitation, the village council may grant waivers to the applicable regulations set forth in this section and as otherwise provided in this chapter subject to the following:
1.
A waiver request in the C-3 zoning district cannot be used to:
i.
Add uses that are not allowable under this Code;
ii.
Increase the allowable floor area ratio; or
iii.
Increase the allowable building height.
2.
When evaluating waiver requests, the village will consider the following factors and any additional criteria set forth in the relevant zoning district:
i.
The extent to which the alternate standard proposed by the applicant differs from the code's standard that would be waived;
ii.
Whether the granting of the waiver will lead to innovative design in which other minimum standards are exceeded;
iii.
Whether the request clearly demonstrates sufficient public benefits;
iv.
Whether the request furthers the goals of the village master plan, and exemplifies the architectural, building, and site design techniques desired within the village's appearance plan;
v.
Whether the requested waiver can be granted in the zoning district;
vi.
Any unusual circumstances regarding the property or immediate area, including the location of power lines, specimen trees, or shade trees; and
vii.
The effect of approving or denying the waiver on the development project and on the surrounding area.
c.
Unified control: All parcels submitted in a single PUD application must be contiguous and must be owned by or be under the unified control of the applicant. All common areas shall be subject to joint maintenance by all of the property owners within the PUD, and the unified control documents shall provide for reciprocal easements over all streets, driveways, parking areas, pedestrian areas and civic space in favor of all properties within the PUD. While the village shall always treat the PUD as one (1) project, portions of the PUD may be conveyed to third parties by metes and bounds once the unified control documents have been approved by the village attorney and recorded in the county public records.
d.
Application procedures: PUD applications made under this section shall be accompanied by the applicable fee and shall contain the following:
1.
Satisfactory evidence of unified control of the entire area within the proposed PUD; agreement to abide by the conditions of approval, if granted; and ability to bind successors in title to these conditions if the proposed development is built.
2.
A proposed master site development plan in sufficient detail to show the approximate locations of buildings, parking areas, and stormwater management facilities. This plan shall also show the exact locations of all access points to public streets and to any abutting land zoned C-3, whether in Lake Park or North Palm Beach. The master plan shall also include intensity of each use, maximum floor area ratio (FAR), and building heights. The master plan may include phased development.
3.
An application and justification statement describing the proposed land uses, identifying requested waivers, demonstrating compliance with all code requirements, and setting for any volunteered limited conditions furthering the intent of the C-3 zoning district.
4.
Vehicular circulation plan and traffic impact study completed by a certified transportation engineer.
5.
Conceptual drainage plan and statement prepared by a certified civil engineer.
6.
Conceptual landscape design completed by a registered landscape architect.
7.
Preliminary plat.
8.
Conceptual architecture elevations and/or renderings and any other information requested by the community development director.
e.
Approval process: PUD applications under this section shall be forwarded along with recommendations from staff to the planning commission, which after holding a public hearing shall make a formal recommendation to the village council. The village council shall also hold a public hearing to take final action on the application. The applicant may then proceed to obtain final site plan and appearance approval for specific phases of the project (if applicable) as indicated in the approved master plan.
f.
Application review procedure: Regardless of the final governing body approving the project, joint municipal staff review and a joint meeting of the North Palm Beach planning commission and the Lake Park planning and zoning board shall be required for approval. Both municipalities shall review the master plan and subsequent site plan and appearance approvals, unless otherwise provided for as part of the master plan approval process. For projects proposed within the jurisdictional boundaries of both Lake Park and North Palm Beach, the project shall be reviewed in accordance with the governing standards of whichever jurisdiction contains eighty (80) percent or more of the project area. The governing body of the same jurisdiction, instead of both governing bodies, shall make final approval, with recommendations from both advisory planning boards.
g.
Regulating Plan. Figure 1, Regulating Plan, identifies the properties, frontage types and street locations for properties developing under the special PUD regulations.
Figure 1 - Regulating Plan
h.
Building frontage types.
1.
Setbacks. The following setbacks shall apply to development parcels approved through the site and appearance review process:
i.
Perimeter setbacks: All buildings fronting public rights-of-way shall meet the front setbacks as indicated in the regulating plan and further described in Table 2.
ii.
Additional setbacks to internal property lines, parcel lines or private internal streets, drives or alleys: All internal buildings shall meet the building frontages as indicated on the regulating plan and described in Table 2.
iii.
Spacing between buildings: The minimum spacing between individual buildings on the same property, same parcel or adjoining C-3 properties shall be determined by applicable fire and building codes.
Table 2 - Building Frontage Types
The following frontage configurations shall be used within the properties designated on the regulating plan. See Figure 1 for permitted frontage locations.
Frontage A1
Frontage A2
Frontage B
Frontage C
Frontage D
i.
Building frontage percentage: The building frontage percentage is calculated by dividing the width of the building by the width of the lot along the same street frontage. All buildings shall have a minimum frontage of seventy (70) percent for internal streets and eighty (80) percent along Palmetto Drive, U.S. Highway One and Northlake Boulevard.
j.
Development Intensities: Master site development plans proposed through this process, and meeting the minimum development thresholds, shall have a maximum floor area ratio (FAR) of 2.75. The FAR is calculated by the total gross area of the property, including existing and proposed easements and proposed public and private streets and alleys multiplied by the FAR. The maximum building area is limited by the maximum allowable FAR. "Building area" means the total air-conditioned leasable or saleable floor area of a building, including hallways, stairs, elevators and storage spaces. The building area does not include: non-habitable enclosed areas on the rooftop; external unenclosed circulation areas; parking areas and parking garages; unenclosed colonnades, porches and balconies; and un-air-conditioned storage spaces.
k.
Building height.
1.
Buildings meeting each of the criteria of these special PUD provisions set forth in subsection (10)(a) are subject to the following height restrictions:
a.
For master site development plans of at least five (5) acres and with at least fifty thousand (50,000) square feet of non-residential uses, buildings may have up to six (6) stories and a maximum height of seventy-five (75) feet, not including roof-top amenities;
b.
For master site development plans of at least seven and one-half (7½) acres and with at least seventy thousand (70,000) square feet of non-residential uses, buildings may have up to ten (10) stories and a maximum of one hundred and twenty-five (125) feet, not including roof-top amenities; and
c.
For master site development plans of at least ten (10) acres and with at least ninety thousand (90,000) square feet of non-residential uses, buildings may have up to fourteen (14) stories and a maximum height of one hundred seventy-five (175) feet, not including roof-top amenities.
In no event shall buildings fronting U.S. Highway One, Northlake Boulevard and Palmetto Drive exceed nine (9) stories or one hundred twenty (120) feet in height within fifty (50) feet of the right-of-way.
2.
For the purposes of calculating the number of stories in a building, stories shall be defined as the space between the finished floor and the top of the structural slab and adjusted as follows:
a.
Each level devoted to parking is considered as an individual story when calculating the number of stories in a building, except where parking levels are screened by a liner building that is a minimum of twenty (20) feet deep and at least two (2) stories tall or an enhanced and aesthetically pleasing architectural feature that screens the parking.
b.
When parking levels are constructed on a slope or are connected by sloping or circular ramps, the number of stories will be based on the non-sloped areas. If there are no non-sloped areas, the number of stories will be counted as the highest parking level plus each parking level below.
c.
A mezzanine will not count towards the number of stories provided the total area of the mezzanine level is less than forty (40) percent of the floor area of the main story below.
d.
Rooftop amenities shall not count as a story so long as no more than forty (40) percent of the rooftop shall be fully enclosed, air-conditioned space. None of the rooftop space is habitable for residential purposes.
l.
Floor to floor heights: Development may use the following standards for the elevation of ground-floors and minimum/ maximum dimensions for floor heights. These standards are measured as follows in Table 3.
Table 3 - Floor to Floor Standards
Exceptions: The maximum floor to floor height standards in Table 3 do not apply in the following circumstances:
1.
A story in or under a building that is devoted to parking is counted as a story when calculating the number of stories in a building, but does not need to comply with the maximum floor to floor heights in Table 3.
2.
When the total area of mezzanine level is less than forty (40) percent of the floor area of the story below, the mezzanine level does not need to comply with the maximum floor to floor heights in Table 3.
3.
Any story that exceeds the height limitation of Table 3 will count as an additional story.
m.
Architectural features:
1.
Main entrances:
i.
The main entrance for all buildings in these special provisions is its principal point of access for pedestrians. Main entrances must face a street, alley, or civic space.
ii.
Buildings fronting on two (2) streets may have a pedestrian entrance on both streets.
2.
Facade transparency:
i.
Transparency means the amount of transparent window glass or other openings in a building's façade along a street frontage. The transparency ratio requirement is expressed as the percentage of the transparent area divided by the entire façade area. It is calculated separately for the ground story of a façade and all upper story floors above the first floor.
ii.
A minimum of sixty (60) percent transparency shall be provided for all ground floor non-residential building frontage and all non-residential uses above the ground floor, with the exception of garage structures and floors above the ground floor that are part of a parking structure which are exempt from this requirement.
iii.
Glazed windows and doors with tinted glass or applied films will be considered transparent if they transmit at least fifty (50) percent of visible daylight.
iv.
The transparent area of windows and doors include rails and stiles as well as muntin bars and other separators within primarily glazed areas; however, the transparent area excludes outer solid areas such as jambs, sills and trim.
n.
Street and sidewalk standards:
1.
Streets and blocks are indicated on the regulating plan, Figure 1. Final development plans may deviate from the alignment of those streets provided the modification provides equivalent functionality to intersections with U.S. Highway One and roads within the Town of Lake Park. Modifications shall be requested through the PUD application process.
2.
Streets shall be designed in accordance with Figure 2 and shall be built concurrently with the development or a phasing plan approved by the village.
3.
To encourage pedestrian circulation, minor streets may be designed primarily for pedestrian use with the ability to accommodate service and emergency vehicles when required.
4.
All streets within the C-3 zoning district shall be owned and maintained privately unless otherwise approved by the village.
5.
Alleys may be proposed between streets shown on the regulating plan.
6.
Sidewalks adjacent to the U.S. Highway One and Northlake Boulevard rights-of-way shall be a minimum of eight (8) feet in width. All other sidewalks shall be a minimum of six (6) feet in width.
7.
One-way streets shall only be permitted adjacent to a civic space, following the lane width, parking and planter dimensions shown in Figure 2. All one-way streets shall be in addition to the proposed streets shown on the regulating plan. A traffic circulation plan shall be included with the master plan application to ensure anticipated connections are maintained.
Figure 2
o.
Landscape standards. All landscaping shall meet the requirements of the Article VIII (Landscaping) of this chapter unless a waiver is requested through the PUD process.
p.
Parking standards. Parking shall meet the requirements of this subsection. Dimensions and specifications for parking shall meet section 45-36.J of this Code.
1.
Parking space ratios: Table 4 provides parking space ratios for various uses on a site within the PUD. These ratios establish the minimum number of on-site parking spaces. Ratios based on square feet refer to the gross floor area.
Table 4 - Parking Space Ratios
2.
Parking space adjustments. The number of on-site parking spaces calculated in accordance with Table 4 shall be adjusted under any one (1) or more of the following circumstances:
i.
Mixed-use developments qualify for the shared-parking percentage reductions specified in Table 5 provided the development includes at least ten (10) percent of its gross floor area in a second category of Figure 4 (residential, lodging, office, business, and civic/education uses).
ii.
Required spaces may be located up to five hundred (500) feet off-site in a dedicated or joint-use parking lot provided that permission to use those spaces is specified in a binding agreement that is reviewed and approved during the site plan and appearance review process.
iii.
Golf cart parking spaces may be provided with minimum dimensions of five (5) feet wide by ten (10) feet long. However, none of the development's required parking spaces may be met by golf cart parking spaces.
Table 5 - Shared Parking Reductions
3.
A deferred parking plan may be approved by the village if a parking study is provided that demonstrates the need for parking is less than what is required by code, or the owner has demonstrated that an alternative means of access to the uses on the site justifies the deferral of the construction of a portion of the required parking spaces. The deferred parking plan shall:
i.
Be designed to contain sufficient space to meet the full parking requirements of the code. The plan shall illustrate the layout for the full number of parking spaces, and shall designate which parking spaces are to be deferred and the timetable for construction.
ii.
Be designed so that the deferred parking spaces are not located in areas required for landscaping, buffer zones, or areas that would otherwise be unsuitable for parking spaces because of the physical characteristics of the land or other requirements of this code.
4.
Physical standards for parking lots, driveways, and loading: Physical standards for outdoor parking lots, driveways and loading are contained herein or as modified by a request through the PUD process. No parking shall be located within the building frontage setback.
5.
Standards for parking garages: Parking spaces may be provided under or in buildings or in dedicated parking garages instead of being provided in uncovered surface parking lots. Such parking spaces need not comply with the minimum setbacks for surface parking lots. These parking spaces must be screened from view from all streets. Screening may be provided by rooms in the same building or with a liner building that is at least two (2) stories tall with space at least twenty (20) feet deep or an enhanced and aesthetically-pleasing architectural feature screening the same two (2) stories.
q.
Sign standards: All projects shall provide a sign plan that shall be reviewed and approved by the village during site plan and appearance approval. Pedestrian oriented signs are strongly encouraged and no ground signs shall be permitted as part of the PUD.
r.
Lighting standards: A photometric plan shall be provided during site plan and appearance review. The plan shall include all luminaire specifications, pole locations, and foot-candle levels on directly adjacent properties. Light trespass shall be limited to the largest extent possible.
(Ord. No. 8-95, § 1(Exh. A), 3-23-95; Ord. No. 18-95, §§ 1, 2, 7-13-95; Ord. No. 1-96, § 1, 1-11-96; Ord. No. 35-96, § 1, 8-22-96; Ord. No. 1-97, § 1, 1-9-97; Ord. No. 2023-06, § 2, 7-13-23)
Within any P public district, uses shall be restricted to those necessary or essential to the administration and operation of the village or any other governmental agency, including, but not limited, to village hall, recreation facilities, waterworks, pumping stations and sewage facilities.
(Ord. No. 3-82, § 1, 1-28-82)
I.
Statement of intent.
A.
The intent of this section is to provide, in the case of a commercial planned unit development consisting of one or more acres, in the case of an industrial planned unit development consisting of one or more acres, and in the case of a residential planned unit development, an added degree of flexibility in the placement and interrelationship of the buildings and uses within the planned unit development, together with the implementation of new design concepts. At the same time the intensity of land use, density of population and amounts of light, air, access and required open space will be maintained for the zoning district in which the proposed project is to be located, except as may be permitted for key redevelopment sites through subsection 45-35.1.VIII. Nothing herein should be construed as allowing deviation for uses other than those specified as permitted uses, nor any greater intensity of use or density of population nor any less required open space than that which is specified in this chapter for the zoning district in which a proposed project is located, except as may be permitted through subsection 45-35.1.VIII.
B.
Subject to the foregoing statement of intent, the village council may, in the case of commercial, industrial and residential planned unit developments, allow for minor modification of the provisions of this chapter or other land development regulations in accordance with the procedure set forth in subsections II, III, IV and V.
C.
The planned unit development procedures in section 45-35.1 may not be used in the following zoning districts which provide a different process for considering minor modifications:
1.
C-MU the C-MU zoning district allows waivers (see the C-MU zoning district and section 45-51).
2.
C-NB the C-NB zoning district allows waivers (see the C-NB zoning district and section 45-51).
D.
The planned unit development procedures in section 45-35.1 may be used in the C-3 zoning district where the property does not meet the threshold criteria for use of the special planned unit development procedure set forth in section 45-34.1(10) of this code. The minimum size requirement set forth in subsection A above shall not be applicable to such planned unit developments within the C-3 zoning district.
II.
Filing of application.
A.
Any person may file an application with the village council for minor modifications of the provisions of this chapter. This application shall contain at least the following:
1.
All application and review procedures shall comply with section 45-49, Application for rezoning, of this Code.
2.
A statement listing and fully explaining the specific modifications of the provisions of this chapter 45 which are desired, as well as the purposes for which the modifications are intended.
3.
All application procedures for residential planned unit developments shall be as required by the subdivision provisions of this Code.
4.
Compliance with the village comprehensive plan is required.
5.
Land covered by the development plan shall be platted concurrently with final approval of the development plan.
6.
The fee for filing an application for a planned unit development shall be established in the master fee scheduled adopted annually as part of the village budget.
7.
The final approved development plan shall include the plat drawings and necessary submittals demonstrating acceptability of all factors and standards evaluated in subsection IV(A).
8.
All dwelling unit sizes, parking criteria and building site coverage must meet the requirements of the zoning code for each type of proposed use, except at follows:
Exception A: applicants for assisted living facilities may, when accompanied by a justification statement, apply for relief from the off-street parking and minimum dwelling unit size requirements.
Exception B: applications submitted through subsection 45-35.1.VIII for key redevelopment sites may, when accompanied by a justification statement, apply for relief from off-street parking and minimum dwelling unit size requirements. Building site coverage requirements do not apply.
Exception C: applications for commercial or mixed-use development may, when accompanied by a justification statement, apply for relief from the off-street parking requirements.
9.
All land included for the purpose of development within a planned unit development shall be owned or under the unified control of the applicant for such zoning designation, whether the applicant is an individual, partnership, corporation, trust or group of individuals, partnerships, trusts or corporations. The applicant shall present satisfactory evidence of the unified control of the entire area by applicant within the proposed planned unit development and shall state agreement that, if he proceeds with the proposed development, he will:
a.
Do so in accordance with the officially approved development plan and such other conditions or modifications as may be attached to the special exception.
b.
Provide agreements, covenants, contracts, deed restrictions or sureties acceptable to the village council, both for completion of the undertaking in accordance with the adopted development plan, and also for the continuing operation and maintenance of areas, functions and facilities which the plan shows are not to be operated or maintained at general public expense. Such documents must be in a form acceptable to the Village Attorney.
c.
Bind his development successors in title to any commitments made under subsections a. and b., preceding.
10.
Any tract of land for which a planned unit development is made shall contain sufficient width, depth and frontage on a public dedicated arterial or major street or appropriate access which will accommodate the proposed use and design.
11.
In the event any building or structure built under this section is destroyed or removed by or for any cause, said building or structure, if replaced, shall be replaced with a building or structure of similar size and type not exceeding the dimensions of the original building or structure. The developer shall include the appropriate deed restrictions and/or covenants so as to require replacement as outlined above.
III.
Referral to planning commission. The village council shall refer each application for a planned unit development to the planning commission for study and recommendation.
IV.
Action of planning commission.
A.
After a study of an application for a planned unit development and the required public hearing, the planning commission shall make a recommendation to the village council to approve, approve as modified, or reject the application based upon the following standards:
1.
The proposed use or uses shall be of such location, size and character as to be in harmony with the appropriate and orderly development of the zoning district in which situated and shall not be detrimental to the orderly development of adjacent zoning districts.
2.
The location and size of the proposed use or uses, the nature and intensity of the principal use and all accessory uses, the site layout and its relation to streets giving access to it, shall be such that traffic to and from the use or uses, and the assembly of persons in connection therewith, will not be hazardous or inconvenient to the neighborhood nor conflict with the normal traffic of the neighborhood. In applying this standard, the commission shall consider, among other things: convenient routes for pedestrian traffic, particularly of children; the relationship of the proposed project to main traffic thoroughfares and to street and road intersections; and, the general character and intensity of the existing and potential development of the neighborhood. In addition, where appropriate, the commission shall determine that noise, vibration, odor, light, glare, heat, electromagnetic or radioactive radiation, or other external effects, from any source whatsoever which is connected with the proposed use, will not have a detrimental effect upon neighboring property or the neighboring area in general.
3.
The location and height of buildings, the location, nature and height of walls and fences, and the nature and extent of landscaping of the site shall be such that they will not hinder or discourage the proper development and use of adjacent land and buildings nor impair the value thereof.
4.
The standards of density and required open space in the proposed project are at least equal to those required by this ordinance in the zoning district in which the proposed project is to be located, except as may be permitted for key redevelopment sites through subsection 45-35.1.VIII.
5.
There shall be no uses within the proposed project which are not permitted uses in the zoning district in which the proposed project is to be located.
Exception: Mixed uses may be allowed if the existing zoning district usage is commercial. The mixed uses shall only be residential and mercantile or residential and business.
B.
The commission may recommend such changes or modifications in the proposed plan as are needed to achieve conformity to the standards as herein specified. The reasons for the changes or modifications shall be included in the recommendation.
C.
The commission shall not recommend the project unless it finds that all of the standards as herein specified have been met. If there are minor modifications to the provisions of this chapter, the commission may recommend its approval at the same time. It shall also, where it deems appropriate and necessary, recommend to the village council those conditions to be imposed upon the project, its operation, or both, that are needed to assure adherence to the aforesaid standards.
V.
Action of village council. The village council, upon the receipt from the planning commission of the report on the planned unit development and the minor modifications to the provisions of this chapter may, after the required public hearing, approve or reject such project and modifications, incorporating with an approval such conditions as the council deems appropriate. The approval shall be by ordinance.
VI.
Effect of approval of village council. The approval of the application by the village council shall allow the building official to issue a building permit in conformity with the application as approved. This permit shall specify with particularity the exact modifications to the provisions of this chapter which have been approved by the village council. The holder of this permit may then proceed with his project in conformity with said permit. No deviations from the conditions of the permit shall be allowed except those which shall be in conformity with the basic provisions of this ordinance as they apply to the zoning district in which the project is located. The community development director may adjust a modification to the provisions of this chapter only if the adjustment had been authorized by conditions that the Village Council placed on the planned unit development approval.
VII.
Public notice. Public notice of all hearings conducted in accordance with this section shall be provided as required by section 21-3 of the village Code.
VIII.
Key redevelopment sites. The village has identified key sites in need of redevelopment and encourages the use of this Planned Unit Development process to redevelop those sites in accordance with design concepts developed or endorsed by the village. Minor modifications to the provisions of this chapter or other land development regulations may be requested through the Planned Unit Development process for these sites. The following additional standards apply during this process:
1.
Regulating plans. Eligible sites are depicted on regulating plans in Figures 45-35.1-A-1, 45-35.1-B-1, and 45-35-1-C-1.
2.
Illustrative plans. Renderings or illustrative plans may be provided in this subsection to show hypothetical buildings on eligible sites using these standards. See Figures 45-35.1-A-2, 45-35.1-B-2, and 45-35.1-C-2.
3.
Build-to zone. Where build-to zones are shown on the regulating plan, the build-to zone is zero (0) feet minimum and twenty (20) feet maximum using the methodology in the C-MU zoning district (unless different distances are specified on the regulating plan). Build-to zones supersede setback requirements in the underlying zoning district.
4.
Floor-to-area ratio. The Comprehensive Plan establishes caps on the ratio of floor area to lot area for most land in the village; however, those caps do not apply to these key redevelopment sites.
5.
Building frontage standards. Where build-to zones are shown on the regulating plan, building frontages must be at least 60% of the lot width, measured using the methodology in the C-MU zoning district (unless a different percentage is specified on the regulating plan).
6.
Building height. Buildings may be up to four (4) stories tall. For the purpose of calculating the number of stories in a building, see the methodology in the C-MU zoning district. This height limitation supersedes height limitations in the underlying zoning district.
7.
Façade transparency. Where build-to zones or civic spaces are shown on the regulating plan, facades must be at least 30% transparent at the ground story and 20% transparent at each upper story, measured using the methodology in the C-MU zoning district (unless different percentages are specified on the regulating plan).
8.
Encroachments. Architectural elements may project beyond the closest point to a property line where an exterior wall may be constructed to the same extent as allowed in the C-MU zoning district, irrespective of setback requirements in the underlying zoning district.
9.
Parking setbacks. New or reconfigured surface parking lots must be set back at least fifty (50) feet from US Highway 1 and at least thirty (30) feet from all other existing and new streets.
10.
Parking garages. Parking spaces may be provided under or in buildings or in dedicated parking garages instead of being provided in uncovered surface parking lots. Such parking spaces need not comply with the minimum setbacks for surface parking lots, but must be screened from view from all streets. Screening may be provided by rooms in the same building or with a liner building that is at least two (2) stories tall with rooms at least twenty (20) feet deep.
11.
New streets. Where a new street is shown on the regulating plan, the new street must be constructed using the standards in the C-MU zoning district (unless different standards are specified on the regulating plan).
12.
Sidewalk easements. Where a sidewalk easement is shown on the regulating plan, the easement must be dedicated and the sidewalk must be constructed using the standards in the C-MU zoning district.
Figure 45-35.1-A-1: Camelot Regulating Plan
Figure 45-35.1-A-2: Camelot Illustrative Plan
Figure 45-35.1-B-1: Crystal Cove Regulating Plan
Figure 45-35.1-B-2: Crystal Cove Illustrative Plan
Figure 45-35.1-C-1: Shore Court at US 1 Regulating Plan
Figure 45-35.1-C-2: Shore Court at US 1 Illustrative Plan
(Ord. No. 23-79, § 1, 10-25-79; Ord. No. 16-87, § 1, 10-22-87; Ord. No. 2006-05, § 1, 4-13-06; Ord. No. 2009-16, § 6, 11-12-09; Ord. No. 2011-10, § 2, 5-26-11; Ord. No. 2014-09, § 14, 9-25-14; Ord. No. 2015-10, § 4, 6-11-15; Ord. No. 2020-06, § 21(Exh. 5), 9-24-20; Ord. No. 2023-06, § 3, 7-13-23)
A.
Intent. The intent of this section is to provide for land uses and activities within land areas designated for the primary purpose of conserving or protecting natural resources of environmental quality.
B.
Uses permitted. Within any part of the OS conservation and open space district, no building, structure, land or water shall be used, except for one (1) or more of the following uses:
1.
Passive recreation;
2.
Flood control;
3.
Protection of quality or quantity of ground water or surface water;
4.
Floodplain management;
5.
Fisheries management;
6.
Protection of vegetative community or wildlife habitats;
7.
Residential and administrative buildings for the protection of the OS district;
8.
Single-family dwellings with accessory buildings customarily incident thereto.
C.
Building height regulations. No main building shall exceed two (2) stories in height and no accessory building more than one (1) story.
D.
Building site area regulations. The minimum lot or building site for each single family dwelling shall be one (1) acre of upland area and have at least one (1) lot dimension, width or length, of a minimum of one hundred fifty (150) feet.
E.
Yard space regulation. No building or portion thereof shall occupy a position fifty (50) feet or less from the upland/wetland boundary of the property.
F.
Coastal zone protection. The Village of North Palm Beach adopts, by reference, the Palm Beach County Coastal Protection Ordinance No. 90-2 in its entirety.
(Ord. No. 20-90, § 2, 6-28-90; Ord. No. 25-90, § 1, 6-28-90; Ord. No. 24-91, § 1, 7-11-91; Ord. No. 2020-06, § 22, 9-24-20)
Article 1 Established.
The Northlake Boulevard commercial district shall consist of real properties within the village on the north side of Northlake Boulevard between Alternate A1A and US Highway 1 as indicated on the official zoning map.
Article 2 Consistency With Comprehensive Land Use Plan
The establishment of the C-NB district is hereby declared consistent with the village comprehensive plan.
Article 3 General Provisions
Sec. 3-1 Applicability.
A.
Applicability. The provisions of the C-NB district shall apply to all existing and future development within the boundaries of the C-NB district as follows:
1.
All new development.
2.
All renovations, additions, or redevelopment to existing structures where the cost of such is greater than fifty (50) percent of the assessed improvement value of the parcel, indicated on the most recent tax roll of Palm Beach County Property Appraiser, or an increase of greater than twenty (20) percent of the square footage of the existing structure shall conform to one hundred (100) percent of the C-NB Regulations.
3.
When the use of an existing structure ceases for one hundred eighty (180) consecutive days, or as otherwise determined to be a discontinued or abandoned use by the local zoning code.
B.
Invalid approvals. Invalid development orders or permits of projects, which have been revoked or have expired shall be subject to all applicable provisions of the C-NB district.
Sec. 3-2 Procedures, variances, and waivers.
A.
Submittal and review procedures. Development or redevelopment within the corridor shall adhere to the regulations imposed by the C-NB district. Compliance with the standards of the C-NB district shall be demonstrated by submittal of architectural drawings and a site development plan or site improvement plan in accordance with village regulations, which generally require site plan and appearance approval before building and other permits may be issued. That approval shall reflect the restrictions imposed by the C-NB district.
B.
Variances. Variances may be granted by the village to standards in the C-NB district using the same procedures and criteria the village uses in granting variances from other regulations (see section 45-50).
C.
Waivers. Waivers may be granted by the village to certain standards in the C-NB district in accordance with the applicable village procedures for granting waivers (see section 45-51), with these additional requirements:
1.
The waiver process in the C-NB district cannot be used to:
a.
Increase the allowable residential density or building height.
b.
Add uses that are not allowable under this Code.
2.
These additional findings must be made before the village approves a waiver in the C-NB district:
a.
The proposed waiver meets the intent of the Northlake Boulevard regulations adopted concurrently by the village, county, Town of Lake Park, and City of Palm Beach Gardens.
Article 4 Zoning Regulations
Sec. 4-1 Development review regulations.
A.
Allowable Uses. Table 4-1 indicates allowable uses in the C-NB district.
1.
The uses listed in Table 4-1 are grouped into four (4) use groups: Residential Uses, Lodging Uses, Business Uses, and Civic, Education & Recreation Uses.
2.
In one (1) of the columns following each listed use, a symbol is provided to indicate that:
a.
This use is permitted by right; or
b.
This use may be approved as a special exception; see section 45-16.2 for standards and procedures; or
c.
This use, like other uses not listed in Table 4-1, is not permitted in the C-NB district.
3.
Terms in Table 4-1 are defined in section 45-2 under "Use Groups," with the exception of the terms private docking and marina, which are defined in subsection 5 below.
4.
Also refer to section 45-16.1 on uses that are similar to uses listed in Table 4-1.
5.
For the purposes of Table 4-1, private docking means the installation of docks, slips or piers for the private use of the owner or occupant of the immediately adjoining upland property. The length and width of docks and piers and the location of dolphin poles and mooring posts are regulated by chapter 5 of this code.
6.
For the purposes of Table 4-1, marina means the installation of docks, slips or piers for commercial purposes. A marina shall comply with the following supplementary use standards:
a.
For each boat slip, a marina shall provide access to a facility for sewage pump out and potable water approved by the Palm Beach County Health Departments.
b.
The length and width of docks and piers and the location of dolphin poles and mooring posts are regulated by chapter 5 of this code.
c.
An accessory marine store shall be permitted.
d.
No live aboard vessels shall be permitted.
Table 4-1 Allowable Uses
B.
Building height. Building height is regulated through the architectural standards in Article 5; in no case may a building in the C-NB zoning district exceed four (4) stories in height. For the purpose of calculating the number of stories in a building, stories shall be defined as the space between finished floor and finished ceiling, adjusted as follows:
1.
Each level devoted to parking is considered as individual story when calculating the number of stories in a building.
2.
A mezzanine will not count towards the number of stories provided that the total area of mezzanine level is less than forty (40) percent of the floor area of the main story below.
C.
Existing planned development districts. Properties within the jurisdiction of the village, which have a PUD designation at the time of adoption of the original NBOZ overlay in 2003, shall be permitted to have uses and design guidelines in accordance with the development order for that planned development district so long as the development order is in effect. Any amendment to the PUD will have to comply with the design guidelines of the current C-NB district.
D.
Accessory use. An accessory use is customarily associated with the principal use, incidental to the principal use, and subordinate in area, extent or purpose, and serves only the principal use. Accessory uses shall be subject to the following:
1.
All accessory uses shall be located on the same lot as the principal use.
2.
A use that is an accessory to a nonresidential principal use shall not exceed thirty (30) percent of the floor area or business receipts of the principal use.
E.
Parking and loading. Properties will retain the existing parking ratios as of the date of adoption of the C-NB Code, which are listed in C-S code section 45-33.E. A new mixed-use development or mixed-use redevelopment may be granted the mixed-use parking standards listed in Table 16.A within 45-31.H.
a.
Physical standards for parking lots, driveways, and loading are provided in subsection 45-36.J.
b.
Mixed-use developments qualify for the shared-parking percentage reductions specified in Figure 14 in 45-31 (H) provided the development includes at least 10% of its gross floor area in a second category on Figure 14 (residential, lodging, office, business, and civic/education uses).
F.
Measuring distances. All required distances between structures and/or uses within this article shall be measured and determined irrespective of existing municipal boundaries.
G.
Notwithstanding anything contained elsewhere within this Code, the properties covered by the C-NB district which have approved uses under the immediately prior zoning district of the village that are considered or deemed not approved uses in the land use chart above, shall retain their permitted status rather than being deemed non-conforming (see sections 45-60-45-68).
Article 5 Architectural Elements
Sec. 5-1 General provisions.
A.
Intent. The provisions of this article are established to provide the C-NB district with an overall architectural style that is consistent with the area and will assist in revitalization and redevelopment of the entire area.
B.
Applicability.
1.
New buildings or structures constructed within the C-NB district shall conform to one hundred (100) percent of the C-NB district design guidelines.
2.
All renovations, additions, or redevelopment to existing structures where the cost of such is greater than fifty (50) percent of the assessed improvement value of the parcel, indicated on the most recent tax roll of Palm Beach County Property Appraiser, or an increase of greater than twenty (20) percent of the square footage of the existing structure shall conform to one hundred (100) percent of the C-NB district regulations.
3.
All renovations, additions, or redevelopment of existing structures where the cost of such is less than fifty (50) percent of the assessed improvement value of the parcel, indicated on the most recent tax roll of Palm Beach County Property Appraiser, or an increase of less than twenty (20) percent of the square footage of the existing structure shall conform with article 5: architectural elements to the greatest extent possible.
4.
Minor repairs, maintenance, or similar improvements are exempt from the C-NB district regulations.
C.
Compatibility with setting. Buildings shall be designed to be compatible with the surrounding manmade and natural environment to achieve an overall, unified design and character for the C-NB district. Design shall consider:
1.
The massing of buildings to encourage and allow pedestrian access between sites and structures;
2.
The avoidance of blank walls or similar features without architectural interest;
3.
The variety of protective features, such as arcades and awnings, building overhangs, landscaping;
4.
And the size, location, and shape of windows and doors.
D.
Alternative architectural styles. The village may authorize the use of an alternative architectural style if determined to be consistent with the surrounding architectural character and design intent of the C-NB district.
E.
Facade/wall height transition. New developments that are located within one hundred fifty (150) feet of an existing building, and are more than twice the height of any existing building within one hundred fifty (150) feet shall provide massing elements to provide an appropriate structure transition.
1.
The transitional massing element can be no more than one hundred (100) percent taller than the average height of the adjacent buildings.
2.
Facades shall have architectural articulation at the pedestrian level and at the roofline.

Facade Wall Height Transition
F.
Illustrative architectural elements. Drawings found in Attachment A represent architectural elements that are appropriate and/or inappropriate for the C-NB district as per this article. They are intended for illustrative purposes only, to guide the property owner and village through the design intent of the C-NB district and are not to regulate or suggest specific architectural design.
Sec. 5-2 Design treatments.
A.
Building design. Structures shall be required to provide three (3) of the following minimum design treatments:
1.
The main facades shall incorporate architectural elements, which create a better human scale, such as;
a.
Canopies or porticos integrated with the building's massing and style;
b.
Overhangs proportional in size to the mass of the building; and
c.
Arcades.
2.
Pedestrian amenities such as benches, sculptures, tables with umbrellas, and trash receptacles;
3.
Peaked roofs with minimum twelve (12) inch overhangs;
4.
Ornamental and structural architectural details, which are integrated into the building structure and overall design; and
5.
Architectural treatment on all four (4) facades/elevations.
a.
Articulation of individual storefronts or facades greater than fifty (50) feet wide;
b.
Window and door openings expressed as individual units as opposed to window wall strips;
c.
Uniform design; and
d.
Any other treatment determined by the village to meet the intent of this section.

Building Design
B.
Unity of character. Buildings or structures, which are part of an existing or future complex shall have a unity of character and design.

Unity of Character
C.
Style. Appropriate historical "themes" as defined by this article are permitted.
D.
Identical buildings. Buildings and structures that are identical or similar in design shall not be permitted throughout the corridor unless each building is part of an overall development with uniform architectural themes.
E.
Scale. New structures shall relate to the form and scale of surrounding architecture. Buildings taller than two (2) stories shall be evaluated as to their visual impacts upon adjacent structures.
F.
Compatible exterior materials and architectural elements.
1.
Lattice work, decorative moldings.
2.
Covered porches with columns and railings.
3.
Arbors, trellises, gazebos, picket fences.
G.
Incompatible architectural elements. Unarticulated, flat, or blank facades are not permitted within the C-NB district.

Incompatible Architectural Elements
H.
Proportion. The proportion of the major elements of a development such as windows, doors and storefront design shall be consistent throughout the development.
Sec. 5-3 Building facade/elevation.
A.
Building features and ornamentation. The following building features and ornamentation are encouraged:
1.
Cornices and parapets, moldings, pilasters, window surrounds, asymmetrical facades, multi-level roofs, and similar elements;
2.
Tile, plaster, poured concrete, or brick materials, consistent with design and style;
3.
Functional and ornamental balconies and balustrades located on the walls or facades facing public rights-of-way, excluding alleys.
4.
Arcades designed with arches; and
5.
Exterior detail elements such as banding and other applied stucco detailing.
B.
Preferred exterior materials. Preferred building exterior siding materials shall include stucco and brick, however cast stone, split blocks, ceramic tiles, high quality coated metal panel systems, and stone are acceptable. Materials including woods, metal siding, fluted block and glass window systems are discouraged within the C-NB district.
C.
Recesses/projections. Facades greater than fifty (50) feet in length shall incorporate recesses and projections a minimum of twelve (12) inches in depth along a minimum of twenty (20) percent of the total length of the facade. The recesses or projections shall be distributed along the facade with a maximum spacing of one hundred (100) feet between each recess or projection.
D.
Visible facades. All building facades visible from public rights-of-way and adjacent properties shall be designed with regard to their surroundings and should not be construed as creating look-alike buildings. Harmony shall be achieved through the proper use of scale, proportions, form, materials, texture, and color.
E.
Trademark forms and colors. Buildings and structures which use trademark or symbolic forms and colors and which have a negative impact on the visual environment of the area, as determined by the village, are prohibited.
F.
Blank walls. Blank walls shall not exceed ten (10) feet in height or twenty (20) feet in length. Control and expansion joints shall constitute a blank wall, unless used in a decorative pattern with varied materials or textures and spaced a maximum of ten (10) feet on center. Relief and reveal depth shall be a minimum of three-quarter (¾) inch. Building wall offsets, including projections, recesses and changes in floor level, shall be used to add architectural interest and variety.

Blank Walls
_____
G.
Other features. Other features, such as gutters, down spouts, vent stacks, vent pipes, and flashing shall be painted in such a way so the color is consistent with the color scheme of the building.
H.
Storefronts. Individual storefront elements of fifty (50) to one hundred (100) foot widths shall be incorporated into the front facade to create a smaller scale for the building. Individual ground-level retail uses with exterior public access that are part of a larger freestanding building shall have display windows along a minimum of twenty (20) percent of the facade length. Windows shall be defined with details such as frames, sills, shutters, planters, relief trims, or lintels.
Sec. 5-4 Building color and finish.
A.
General. Building materials and color selection shall achieve visual order through the consistent use of compatible color palettes.
1.
All storefronts within a development shall utilize a consistent palette of materials and textures.
a.
Variation of individual storefronts within a given palette of materials may be permitted, however principal walls and facades must maintain a uniform color.
b.
Different colors for individual storefronts within a complex are permitted as long as overall design integrity is not compromised.
2.
Color should be chosen to add to the retail environment of these buildings.
3.
The use of color to attract attention to a business from a distance is discouraged.
B.
Color palette. Colors of the structures within the C-NB district are to reflect the following characteristics:
1.
Primary colors for structures must be white, light gray, eggshell, pale blue, pale green, coral, peach, pale yellow, buff, beige, and sand.
2.
Secondary building colors should be limited to twenty-five (25) percent of the wall area. These colors may consist of a medium intensity of the base building color or a complimentary color.
3.
Trim colors shall be limited to ten (10) percent of any single wall area. Trim colors are used for accent and identifying purposes and are the brightest group of colors allowed. These colors include greens, blues, yellows, and others that are found in our lush landscape and natural features.
4.
Ornamentation, trim, courses, window frames, and door frames may be painted white or a contrasting color such as dark brown, dark gray, blue, light green, brown, plum, black.
5.
Roof materials may be brown, gray, white or other color consistent with the overall color scheme of the structure.
_____
Sec. 5-5 Architectural elements.
A.
Pedestrian walkways. Pedestrian walkways with arcades, awnings or colonnades shall be provided along the front and sides of buildings and be integrated with adjacent properties. Arcades or colonnades shall have a minimum clearance width of six (6) feet and minimum clearance height of twelve (12) feet. Awnings shall have a minimum clearance width of six (6) feet and minimum clearance height of eight (8) feet.

Pedestrian Walkways
B.
Building height. Building height is defined by the applicable building code. Maximum building heights are subject to a finding of compatibility of adjacent structures as follows:
1.
A maximum height of forty (40) feet.
C.
Entrances. Entrance design elements that are intended to give protection from the sun and adverse weather conditions shall be integrated into a design style for the building. Each freestanding principal structure shall have a minimum of one (1) clearly defined primary public entrance feature. The primary entrance shall incorporate a minimum of one (1) design element each from Tables 5-5A and 5-5B below:

Entrances
Table 5-5A
Primary Entrance
Feature Design Element
Table 5-5B
Secondary Decorative Treatment
D.
Mechanical equipment screening. All rooftop mechanical equipment shall be located at a distance from the edge of the building and properly screened so as not to be visible from any street or adjoining property. Materials used for screening purposes shall be compatible with the architectural style, color, and materials of the principal building.

Mechanical Equipment Screening
E.
Cornices. Existing cornices should be retained and preserved.
_____
Sec. 5-6 Window/door treatments.
A.
Windows. The following major design characteristics are encouraged:
1.
Arches integrated into window designs;
2.
Trim color in contrast with principal color of structure;
3.
Large ground level store front windows, consisting of at least fifty (50) percent of the wall area of the storefront;
a.
The windows of all ground floor businesses open to the public shall remain clear of curtains, shutters, or similar visual barriers, which would obscure interior displays or activities.
b.
Reflective or darkly tinted glass, which prevents seeing into the building is not permitted on the ground level.

Windows
_____
4.
Recessed openings;
5.
Hurricane/security panels or shutters which are removable, recessed, or architecturally compatible with overall design, and consistent with wind load resistance standards; and
6.
Replacement windows should fill the entire opening and duplicate the original pattern. Surrounding trim should be retained in the proper style and proportion.
B.
Doors. The following major design characteristics are encouraged:
1.
Recessed openings;
2.
Scaled and proportionate to balance of structure;
3.
Articulated and ornamental door design; and
4.
Use of materials to convey mass and strength.
C.
Awnings. Awnings shall reflect colors that compliment the existing architecture and not detract from the storefront or from adjacent storefronts.
1.
All awning supports should be attached to the building, not placed in the sidewalk or extending into the parking lot. Additionally, awning frames should be simple pipe frames, well concealed by canvas covers or attachments.
2.
Plastic backlit awnings or awnings constructed of shiny materials are not permitted.

Awnings
_____
D.
Fenestration and details. Architectural features or details such as windows, awnings, covered arcades, sills, shutters, reliefs, trims, columns, pilasters, quoins, reveals, cornices, horizontal banding, arches, decorative vents, and/or accent tile, shall be integrated into the facade to avoid the appearance of a blank wall and shall be provided along a minimum of sixty (60) percent of the facade length of the front and side facades, and rear facades if continuous to a public street or residential zoning district.
E.
Materials. Doors and windows should be glass and aluminum (painted) storefront, high quality steel and glass systems, high quality woods such as plantation grown teak or mahogany, and brass, bronze or stainless steel.
F.
Exterior treatment. The exterior treatment of the front elevation shall consist of a minimum of two (2) different building materials, textures, or finishes at a ratio of a maximum of eighty (80) percent for the primary treatment and a minimum of twenty (20) percent total for the secondary treatment. Exterior finishes such as stucco, brick, wood, coquina or cut stone are encouraged. The surfaces of multiple exterior storefronts within a building, except regional commercial facilities, shall compliment contiguous storefronts.
G.
Kick plates. Kick plates protect windows by raising the glass area to a safer and more easily viewed height. New storefront can have simplified kick plates, or have an all-glass front that creates a kick plate line and proportion by use of a framing bar or painted line.
Sec. 5-7 Preferred roof materials/styles.
A.
Design types. The following major design characteristics are encouraged.
1.
Flat roofs with an articulated parapet of four (4) feet in height necessary to screen mechanical equipment.
2.
Hip or gable roofs, minimum of 1:3 pitch, positioned so that the hip-roof end is facing the street.
3.
Exposed rafter tails.
4.
Pitched roofs or shed-style arcades of flat, S-shape, or barrel vaulted cement or clay tiles are encouraged.
5.
Standing seam metal roofs made of copper, stainless steel or galvanized steel are acceptable. Other metal roof types including industrial rib roofs are prohibited.
6.
Mansard roof, which shall wrap around the building so that there is visual continuity around the entire building. Vertical roofs and mansard roofs used on a portion of the building perimeter only are prohibited.
7.
Overhangs over pedestrian walkways are encouraged to provide shade and rain protection. All overhangs shall wrap around the building so that there is visual continuity around the entire building.
B.
Treatments. Roof features shall be in scale with the building's mass and complement the character of adjoining and or adjacent buildings.
C.
Edge and parapet treatment. A minimum of two (2) locations, the roof edge and/or parapet shall have a vertical change from the dominant roof condition a minimum of four (4) feet. At least one (1) such change shall be located on a primary facade adjacent to Northlake Blvd. Designers are encouraged to articulate the parapet wall as a means of adding interest to the building facade and to screen any mechanical equipment.
D.
Preferred materials for pitched roofs. Roofing material should be constructed to enhance the appearance of the community. Materials shall include glazed or unglazed ceramic tiles, metal shingle, concrete tile, or slate barrel, "s" shape, or similar style clay or cement tiles.
E.
Large, unarticulated roofs. The roofline at the top of the structure shall not run continuously for more than one hundred (100) feet without offsetting or jogging the roof plane.

Large, Unarticulated Roofs
_____
Sec. 5-8 Definitions.
A.
The definitions set forth in this section shall be construed to be the same as if incorporated in the villages' development regulations.
1.
Architectural composition. The scale, height, mass, proportion, color, form, style, detail, treatment, texture, construction material, and roof design of a project or building.
2.
Articulated parapet. A parapet with a height variation proportional to the building height.
3.
Balustrade. A series of balusters with a top and bottom rail.
4.
Bracket. A decorative support feature located under eaves or overhangs.
5.
Canopy. An ornamental roof-like structure used on commercial buildings, which provide advertisement space, shade, and protection for the storefront and pedestrian traffic.
6.
Compatible/compatibility. Design that utilizes accepted site planning (e.g. building placement, orientation and siting) and the elements of architectural composition within the context of the surrounding area. Similar adjacent land uses or square footage shall not necessarily constitute architectural compatibility.
7.
Complement/complementary. Having similar architectural composition.
8.
Dormer. A secondary feature of a building housing a window or vent, which is set upon the slope of a roof surface. Dormers may provide ventilation, lighting, or auxiliary living space.
9.
Eave. The projecting overhang at the bottom edge of a roof surface.
10.
Exposed beam. A decorative wooden beam that appears to support eaves, prevalent on Bungalow-style residences.
11.
Frieze. A wide facing board located at the junction of the exterior wall and roof eaves.
12.
Gable roof. A triangular section at the end of a pitched roof.
13.
Historical "themes." Any building, structure, or other architecture which is historically or architecturally significant. Recognized architectural styles such as Spanish Eclectic, Mediterranean Revival, Florida Vernacular, Bermuda/Island is appropriate for the C-NB district.
14.
Hip roof. A roof with sloping sides and ends.
15.
Lattice. A panel of criss-crossed diagonal or perpendicular slats often utilized as decorative infill between masonry foundation piers.
16.
Lintel. A horizontal beam located above a window or door.
17.
Louver. A door or window comprised of overlapping downward sloping slats, which shed rain while admitting light and air.
18.
Masonry. Brick, block, or stone, which is secured with mortar.
19.
Massing. A term used to define the over all volume or size of a building.
20.
Molding. A continuous decorative strip of material applied to a surface.
21.
Parapet. A solid protective or decorative wall located along the outside edge of a roof.
22.
Rafter. A wooden member of a roof frame, which slopes downward from the ridgeline.
23.
Scale. A term used to define the proportions of a building in relation to its surroundings.
24.
Shed roof. A roof with a single sloping pitch.
25.
Stucco. A masonry material applied as exterior wall fabric.
26.
Substantial renovation. Any expansion, alteration, renovation, addition, or redevelopment to existing structures where the cost of such is greater than fifty (50) percent of the assessed improvement value of the parcel, indicated on the most recent tax roll of Palm Beach County Property Appraiser, or an increase of greater than twenty (20) percent of the square footage of the existing structure.
Article 6 Reserved Similar provisions can now be found in art. VIII.
Article 7 Signage and Outdoor Displays
Sec. 7-1 General provisions.
A.
Intent. It is the intent of this article to:
1.
Regulate and limit the existing and proposed posting, display, erection, use and maintenance of signs and other advertising structures within the C-NB district.
2.
Protect property values, create a more attractive economic and business climate, enhance and protect the physical appearance of the community and preserve the scenic and natural beauty of the C-NB district.
3.
Secure and preserve the right of free expression guaranteed by the First Amendment of the Constitution of the United States.
B.
Nonconforming signs. A nonconforming sign is any sign which was established pursuant to the issuance of a sign permit on or before the effective date of these regulations, and which is rendered nonconforming by the provisions of this article.
1.
All accessory signs, wall signs, freestanding signs, awning signs, pole signs, and ground signs erected within the corridor that do not conform to the terms of this article shall conform by May 31, 2014 or be removed from the premises.
2.
A face change on a wall sign, awning sign, pole sign or ground sign will not require the sign to conform. However, all other signs and outdoor displays including, but not limiting to flags, balloons, banners and temporary signs shall be removed within thirty (30) days of the effective date of this article.
3.
A nonconforming sign may not be enlarged or altered.
4.
If a nonconforming sign is damaged or destroyed by any means to the extent of fifty (50) percent or more of its replacement value at the time of the damage, the sign may not be rebuilt or used thereafter unless it conforms to all of the provisions of this article.
5.
Legal billboards that are subject to existing settlement agreements with Palm Beach County are not to be considered nonconforming, and therefore are not subject to the amortization schedule set forth in the C-NB district.
C.
Amortized signage. Signs subject to an amortization schedule by the village, prior to the adoption of the C-NB district, shall be required to adhere to the previous amortization schedule.
D.
Removal of nonconforming signs. Any sign which may become nonconforming as a result of these regulations may be continued in operation and maintained for ten (10) years as a legal nonconforming sign, provided that:
1.
Damaged nonconforming signs, which may not be reconstructed or repaired under the terms of this section, shall be removed within twenty (20) days after the damage or destruction occurs.
2.
In the event the damage or destruction is less than fifty (50) percent of its replacement value at the time, the sign may be restored to its original condition and may continue to be displayed.
3.
Normal maintenance of nonconforming signs shall be permitted, including necessary non-structural repairs and incidental work, which does not extend or intensify the nonconforming features of the sign.
E.
Prohibited signs. It shall be unlawful to erect or keep any sign not expressly authorized by, or exempted from, this article.
F.
Non-commercial messages. Any sign erected pursuant to the provisions of this article may, at the option of the applicant, contain either a non-commercial message unrelated to the business located on the premises where the sign is erected or a commercial message related to the business and located on the business premises pursuant to the following regulations:
1.
The non-commercial message may occupy the entire sign face or portion thereof.
2.
The sign face may be changed from commercial to non-commercial messages as frequently as desired by the owner of the sign, provided that the following is true:
a.
the size and design criteria conform to the applicable portions of this article;
b.
the sign is allowed by this article;
c.
the sign conforms to the requirements of the applicable zoning designation; and
d.
the appropriate permits are obtained.
3.
For the purposes of this sign code, non-commercial messages shall never be deemed off-premises.
Sec. 7-2 Appearance.
A.
General. All permanent signs shall comply with the requirements and procedures of the C-NB district and village regulations and shall be part of the architectural concept and character of the site. Lighting, materials, size, color, lettering, location and arrangement shall be harmonious with the building design.
1.
If external spot or flood lighting is used, the light fixtures and light source shall be arranged so that the light source is shielded from view.
2.
Excessive brightness and brilliant colors shall be avoided.
B.
Maintenance. All signs, including their supports, braces, guys and anchors, electrical parts and lighting fixtures, and all painted and display areas, shall present a neat and clean appearance. The vegetation around the base of ground signs shall be neatly trimmed and free of unsightly weeds, and no rubbish or debris that would constitute a fire or health hazard shall be permitted under or near the sign. Examples of unacceptable maintenance and repair include the following:
1.
Cracked, ripped, or peeling paint present on more than ten (10) percent of the surface area of a sign;
2.
Bent, broken, loose, or otherwise insufficiently attached supports, struts, or other appendages;
3.
Partial illumination for more than fourteen (14) days;
4.
Obstruction of sign face by weeds, vines, or other vegetative matter; and
5.
Maintaining a position that is more than fifteen (15) degrees from vertical for more than ten (10) successive days.
Sec. 7-3 Exempt signs.
A.
General. The following signs are exempt from these sign regulations and applicable permit fees, provided they are not placed or constructed so as to create a hazard of any kind:
1.
Political signs. Political signs shall comply with the regulations of the village.
2.
Holiday lights and decorations. The display of holiday lights and decorations shall comply with the regulations of the village.
3.
Manufacturer signs. Signs incorporated into machinery or equipment by a manufacturer or distributor, which identify or advertise only the product or service dispensed by the machine or equipment, such as signs customarily affixed to newspaper racks, telephone booths, and gasoline pumps.
4.
Merchandise displays. Merchandise displays behind storefront windows so long as no part of the display moves or contains flashing lights.
5.
Religious displays. Religious displays as permitted by law.
6.
Works of art. Works of art, ornamental figurines and the like, both two and three-dimensional, used for decorative purposes and not related to the operation of a commercial enterprise.
Sec. 7-4 Temporary signs.
A.
Generally. Temporary signs do not require a building permit and are allowed throughout the corridor, subject to the restrictions imposed by the C-NB district and village's regulations. The sign shall not be an electric/illuminated sign.
B.
Removal of illegal temporary signs. Any temporary sign not complying with the requirements of this section is illegal and subject to immediate removal by the village at the expense of the owner and/or individual responsible for the illegal placement.
C.
Restrictions. Advertising for the following purposes may be displayed:
1.
Construction signs. To identify development construction in progress.
a.
Such message shall not be displayed more than sixty (60) days prior to the beginning of actual construction of the project, and shall be removed when construction is completed.
b.
If a message is displayed pursuant to this section, but construction is not initiated within sixty (60) days after the message is displayed, or if construction is discontinued for a period of more than sixty (60) days, the message shall be removed, pending initiation or continuation of construction activities.
c.
Upon final certificate of occupancy of a completed residential or nonresidential structure, such sign shall be removed.
2.
For-sale signs. Such signs shall comply with the regulations of the village.
3.
Grand opening signs. To announce the opening of a new business or the change of ownership of an established business shall be permitted in addition to other signs, which may be permitted by this regulation.
a.
Signs shall not remain in place for more than seven (7) days commencing immediately upon the opening of a new business or the change of ownership of an established business.
4.
Special event signs. Such signs shall be placed no more than fifteen (15) days prior to the beginning of the event and provided further that all such signs shall be removed within forty-eight (48) hours after the event. Approval of the size and locations of the signs by the village is required.
_____D.
Permissible size, height, location and number of temporary signs.
Table 7-4
Permitted Temporary Signs
Sec. 7-5 Accessory signs.
A.
Permitted. A permanent accessory sign may be a ground or monument sign with one (1) or two (2) faces or wall signs with one (1) face.
B.
Content. Signs permitted pursuant to this section may contain any noncommercial message, which has not been declared by a court of competent jurisdiction to be obscene, defamatory or otherwise contrary to law. A permanent accessory sign may only display any combination of the following:
1.
Street address number and/or name.
2.
A logo symbol for the building or the building occupant, which does not exceed fifty (50) percent of the allowable sign area.
3.
Letters depicting the nature of the business and that are a maximum of fifty (50) percent of the height of the letters depicting the name of the building or building occupant.
C.
Sign type and criteria.
1.
Gasoline signs.
a.
One (1) gasoline price sign shall be permitted per gasoline station to provide the price of gasoline only and shall be attached to permanent sign structure or to a building. The price sign shall not be included in the total area of signage otherwise permitted.
b.
Signs providing information needed for motorists to locate the proper service station pump site shall be permitted. Such signs shall include those identifying the type of fuel sold at individual service station pumps, the location of full service and self-service pump islands and other similar information. Such signs shall be of a size, which can be seen by motorists once on the site, but shall not be sized to attract attention of motorists on public rights-of-way.
2.
Flags. A maximum of three (3) flags or insignias of governmental, religious, charitable, fraternal, corporate, or other organizations may be displayed on any one (1) parcel of land. However, flags bearing commercial messages including corporate insignias, trademarks, and logos are considered a sign and therefore counted as part of the permitted business sign square footage as defined by this article.
3.
Parking area directional signs. Parking area directional signs may be erected at each point of ingress and egress to a parking lot or parking area shall not be counted as part of an occupant's allowable sign area. Directional signs shall be subject to the following:
a.
Such signs shall not exceed two (2) square feet in background area nor extend to a height greater than three (3) feet above ground.
b.
Only one (1) such sign shall be allowed at each point of ingress and egress, and such signs shall not create a traffic or pedestrian hazard.
c.
No names or logos are permitted on the sign.
4.
Parking area instructional and related signs. The direction of traffic flow within a parking or loading area, ingress and egress points, areas where no parking is permitted, identification of parking spaces reserved for other specific groups or for individuals, and other similar information.
5.
Vehicle signs. The following vehicle signs are not permitted within the C-NB district:
a.
Signs in excess of ten (10) square feet. Vehicle signs with a total sign area on any vehicle in excess of ten (10) square feet, when the vehicle is parked on the same property as the business being advertised and:
1)
is parked for more than sixty (60) consecutive minutes within one hundred (100) feet of any street right-of-way; and
2)
is visible from the street right-of-way that the vehicle is within one hundred (100) feet of; and is parked on commercially zoned property.
b.
Vehicle signs less than or equal to ten (10) square feet. Vehicle signs visible from any street right-of-way with a total sign area less than or equal to ten (10) square feet, when the vehicle is parked for more than sixty (60) consecutive minutes on a commercially zoned property and on which the business being advertised is located and:
1)
is parked within the front two-thirds (⅔) of the area between the front building line and the front lot line; or
2)
in the case of corner lots, is parked within the front two-thirds (⅔) of the area between the side building line and the side lot line; or
3)
is parked within thirty (30) feet of any street right-of-way.
_____D.
Permissible size, height, location and number of permitted accessory signs.
Table 7-5
Permitted Accessory Signs
Sec. 7-6 Business signs.
A.
Permitted. A permanent sign advertising a business or establishment shall consist of the following:
1.
A canopy or awning sign;
2.
A ground or monument sign with one (1) or two (2) faces;
3.
A wall sign with one (1) face; and/or
4.
A window sign not to exceed twenty (20) percent of the total window area covered.
B.
Content. A permanent sign may only display any combination of the following:
1.
Street address number and/or name of the business or occupant.
2.
A logo symbol for the building or the building occupant which does not exceed fifty (50) percent of the allowable sign area.
3.
Letters depicting the nature of the business and that are a maximum of fifty (50) percent of the height of the letters depicting the name of the building or building occupant.
4.
These restrictions (1, 2 and 3 above) shall not apply to permitted noncommercial messages.
C.
Sign type and criteria.
1.
Canopy or awning signs. Notwithstanding limitations of this article on the projection of signs from the wall of a building, signs shall be permitted on canopies and awnings.
a.
The sign shall indicate only the name of the building or the name of the principal occupant of the building;
b.
The sign shall be painted or printed directly on the canopy or awning; and
c.
The sign shall be counted in determining the area of wall-mounted signs permitted on the wall from which the canopy or awning projects.
2.
Ground signs. The name, logo and address of parcel of land as per the following standards:
a.
A minimum of one (1) sign for parcel of land.
b.
Overall. For parcels with greater than three hundred (300) linear feet of street frontage, one (1) additional sign for each additional seven hundred (700) linear feet of street frontage to include intersecting roadways.
c.
Outparcels. Outparcels of a commercial center are permitted to have one (1) ground sign:
1)
If the outparcel has direct access to Northlake Boulevard.
2)
Overall.
a)
If the outparcel is entitled to a ground sign, street frontage calculations for the outparcel should not be included in the street frontage calculations for the adjacent commercial center.
b)
Outparcel information may be provided in the permitted commercial center ground signs if internally accessed pursuant to regulations of this article.
d.
The maximum area of a ground sign is sixty (60) square feet.
e.
The maximum height of a ground sign is ten (10) feet.
f.
Minimum setbacks. The minimum setbacks for ground signs are as follows:
1)
Two hundred (200) feet between signs located within the same parcel of land.
2)
Fifty (50) feet from sign to a non-right-of-way property line.
3)
Five (5) feet from the public right-of-way.
4)
Eight (8) feet from utility transmission lines.
5)
Four (4) feet from the edge of pavement or curb when placed in an ingress/egress median.
g.
Street frontage. Street frontage is measured as the linear length of a property line adjacent to a public right-of-way.
3.
Wall signs. The name, logo and address of the business to which the sign is accessory and other related information. No wall sign shall be painted directly onto the building.
4.
Window signs.
a.
A maximum of twenty (20) percent of the total window area of each business may be covered with signage or other opaque material such as display racks, merchandise or other items.
b.
Window signs shall be permanent, identifying or informative in nature and such signage shall be included when calculating the allowable square footage for the business.
_____D.
Permissible size, height, location and number of permitted business signs.
Table 7-6
Permitted Business Signs
Sec. 7-7 Street numbers.
A.
General. The regulations of this section are as per Palm Beach County's Bureau of Safety Services Regulations:
1.
Approved numerical and/or alphabetical addresses shall be posted for all new and existing buildings in such a fashion that it is plainly visible and legible from the street or roadway.
2.
All address related numbers/letters shall be posted on contrasting backgrounds and clearly visible from the street.
3.
All building numbers and/or letters shall be a minimum of six (6) inches in height.
4.
Numerals shall be affixed at center or on either end of the building and clearly visible from the street. Multi-unit buildings, in addition, shall have numerical or letter unit designations clearly visible from the street.
5.
All street numbers shall be a contrasting color with the building or background field.
B.
Multi-unit buildings, two stories and up. In multi-unit buildings, two stories and up, directional unit identification signs shall be posted outside of each elevator and stairwell. This will apply only when there is an option for direction of travel.
C.
Additional posting. All multi-unit buildings that can be accessed from the rear, shall have the address and unit numbers posted at the rear of the building. When property layout, landscaping, or driveway design limits the visibility of the address, additional signs shall be posted to identify buildings or direction of travel to reach buildings.
Sec. 7-8 Measurement determinations.
A.
Facade area. The facade area shall be measured by determining the area within a two-dimensional geometric figure coinciding with the edges of the walls, windows, doors, parapets, marquees, and roof slopes of greater than forty-five (45) degrees that form a side of a building or unit.
B.
Sign area. The area of a sign shall be the area within the smallest square, rectangle, parallelogram, triangle, circle or semicircle, the sides of which touch the extreme points or edges of the sign face.
1.
Computation of sign area.
a.
The area of a sign permissible for each classification of sign, as herein set forth, shall include all areas of the sign containing informational and/or directional wording or symbols, and shall include background area of the wording or symbols, as measured by inscribing a continuous line around all the letters or symbols contained thereon.
b.
Sign area for signs not covered by sections herein and except as provided below shall be the area of each face of a sign including the area of the smallest circle, triangle or parallelogram which contains all content, background and structural elements of the sign.
c.
Where a sign is composed of letters attached directly to a facade, window, door, or marquee, and the letters are not enclosed by a border or trimming, the sign area shall be the area within the smallest rectangle, parallelogram, triangle, circle or semicircle, the sides of which touch the extreme points of the letters or pictures.
2.
Exempted from computation of area of freestanding signs. The area of each face of a freestanding sign shall be computed as described herein except that individual support structures shall not be considered to be part of the sign if they:
a.
Support structures which are part of a decorative landscape wall or screen wall shall not be considered to be part of the sign; and
b.
Do not contain letters, symbols or other sign content.
C.
Number of signs. In general, the number of signs shall be the number of non-contiguous sign faces. Multiple non-contiguous sign faces may be counted as a single sign if all the sign faces are included in the geometric figure used for determining the sign area.
1.
Where two (2) sign faces are placed back to back in a single sign structure and are at no point more than three (3) feet apart, it shall be counted as one (1) sign.
2.
If a sign has four (4) faces arranged in a square, rectangle or diamond, it shall be counted as two (2) signs, and shall be the areas of the two (2) largest faces.
D.
Sign height. The height of a sign shall be measured as the vertical distance from the finished grade, excluding berms, at the base of the supporting structure to the top of the sign, or its frame or supporting structure, whichever is higher.
Sec. 7-9 Design, construction, and location standards.
A.
Illumination standards.
1.
All signage less than ten (10) feet in height shall provide lighting that in no manner blinds or shines on adjacent vehicular or pedestrian circulation.
2.
All wall-mounted signs over ten (10) feet in height shall be internally lit (if lighting is utilized).
3.
Appropriate light shields shall be utilized to ensure protection.
4.
All illuminated signs shall be internally lighted and only by lights placed inside a cabinet sign with an opaque background and translucent copy; lights placed inside individual channel letters with a translucent face; or by "halo" lights placed behind individual reverse pan-channel letters.
B.
Placement standards.
1.
Supports for signs or sign structures shall not be placed in, upon, or project over a public right-of-way or public easement.
2.
Sign or sign structures shall not be erected that impedes use of any fire escape, emergency exit, or standpipe.
3.
All ground or freestanding signs shall be erected within landscaped areas.
a.
Minimum distance from the edge of the landscaped area to the sign base shall be three (3) feet.
b.
The landscaping shall consist of shrubbery a minimum of thirty (30) inches high creating a hedge or individual shrubs of the same or varying species thirty (30) inches high spaced not more than eighteen (18) inches apart at their base.
C.
Clearance standards. All signs shall provide a minimum of nine (9) feet of vertical clearance over pedestrian ways and fourteen (14) feet over vehicular ways. Florida Department of Transportation (FDOT) standards shall control on all roadways.
D.
Relationship to building features. A wall sign shall not extend beyond any edge of the surface to which it is attached; disrupt a major architectural feature of the building; or project no more than eighteen (18) inches perpendicularly from the surface to which it is attached.
E.
Format for multiple occupancy complexes. A sign format or master signage program for wall signs to be placed on multiple occupancy complexes shall be approved by the village prior to a wall sign being permitted to be constructed, altered or remodeled after the effective date of the C-NB district. As a minimum, the sign format shall specify the types, dimensions, placement, colors, and shape of the signs and the style of lettering which shall lend a unified appearance to the signs of the occupants in the complex.
F.
Signs required to be designed. The following signs shall be designed by a Florida-registered architect, landscape architect, or engineer:
1.
Wall signs that project perpendicularly from the surface to which it is attached and that are more than twelve (12) square feet in area; and
2.
Ground signs of more than forty (40) square feet in area.
Sec. 7-10 Exterior architectural lighting.
A.
General. The term "exterior lighting," as used in this section, shall mean any variety of lighting forming an integral part of a building. Such lighting shall meet the following requirements and shall be subject to final approval by the village.
B.
Limitations. Exterior lighting shall not:
1.
Flash, revolve, flutter or be animated;
2.
Obstruct the vision of pedestrians.
3.
Project into or over any public street right-of-way including the sidewalk;
4.
Obstruct or interfere with any door, fire exit, stairway, ladder or opening intended to provide light, air, ingress or egress;
5.
Constitute a traffic hazard or be a detriment to traffic safety.
Sec. 7-11 Definitions.
A.
Definitions. The definitions set forth in this section shall be construed to be the same as if incorporated in the village's development regulations.
1.
Accessory sign. A permanent ground or building wall sign that is permitted under this article as incidental to an existing or proposed use of land.
2.
Advertising. Sign copy intended to directly or indirectly promote the sale or use of a product, service, commodity, entertainment, or real or personal property.
3.
Advertising structure. Any structure installed for advertising purposes, with or without any advertisement display thereon, situated upon or attached to real property upon which any poster, bill, printing, painting, device or other advertisement of any kind whatsoever may be placed, posted, painted, tacked, nailed, or otherwise fastened, affixed or displayed; provided, however, that said term shall not include buildings.
4.
Animated sign. A sign with action or motion using electrical energy, electronic or manufactured sources of supply, or wind actuated elements, including rotating, revolving or flashing signs.
5.
Awning sign. A sign painted on, printed on or attached flat against the surface of the awning. An awning is comprised of a lightweight, rigid or retractable skeleton over which an approved cover is attached that provides weather protection, identity and/or decoration and is wholly supported by the building to which it is attached.
6.
Background area of sign. The entire background area of a sign upon which copy could be placed. In computing the area of a sign background, only that face or faces which can be seen from any one direction at one time shall be counted.
7.
Billboard (off-premises sign). A sign advertising an establishment, merchandise, service or entertainment, which is not sold, produced, manufactured or furnished at the property on which said sign is located.
8.
Building facade. All windows, doors and wall areas of a building exterior in one place or elevation thereof.
9.
Construction sign. A temporary sign, which identifies those engaged in construction on any building site, including the builder, contractor, developer, or other persons or artisans concerned in such construction.
10.
Copy. The linguistic or graphic content of a sign.
11.
Copy area of a sign. The actual area of the sign copy applied to any background. The copy area is computed by straight lines drawn closest to the copy extremity.
12.
Development sign. A temporary sign advertising the sale or rental of structures under construction upon land, which has been legally assembled into one development location.
13.
Directional sign. An on premises sign designed to guide or direct pedestrians or vehicular traffic.
14.
Frontage. The length of the property line of any one parcel along the main street on which it borders.
15.
Frontage street facade. That portion of an exterior elevation of a building extending from grade to the top of the parapet wall or eaves and the entire width of the building wall elevation which fronts on a street, unless such parapet wall or eaves shall be over thirty (30) feet high, in which case only the first thirty (30) feet shall be considered the frontage street facade for purposes of this article. Only one street facade shall be designated as frontage street facade.
16.
Ground sign. A sign that is supported by a three (3) foot high maximum base, independent of support by a building; sign and base shall be solid and uniform; shall generally have a columnar line; shall essentially have the same contour (parallel) from grade to top of the sign; and shall be independent of any building for support.
17.
Height of a sign. The height of a sign shall be measured as the vertical distance from the finished grade, excluding required berms, at the base of the supporting structure to the top of the sign, or its frame or supporting structure, whichever is higher. A berm exceeding three (3) feet in height shall be included in the overall measurement of the height of the sign.
18.
Identification sign. A sign at a business location used to identify the name of the business located thereon and/or its principals and address.
19.
Logo. Any symbol, trademark, picture or other graphic representation which is used to signify or identify the particular business or organization.
20.
Monument sign. See "Ground sign."
21.
Multiple occupancy complex. Any use consisting of a parcel of property, or parcel of contiguous properties, existing as a unified or coordinated project, with a building or buildings housing more than one occupant.
22.
Neon tube sign. A sign electronically lighted by exposed tubes containing inert gas.
23.
Nonconforming sign. A sign existing at the effective date of the adoption of this article, which could not be built under the terms of this article.
24.
Occupant (occupancy). The use of a building or structure for commercial transactions.
25.
Off-premise sign. A sign advertising an establishment, merchandise, service or entertainment, which is not sold, produced, manufactured or furnished at the property on which said sign is located.
26.
Painted wall sign. A sign painted on a wall or on any other surface or part of a building or structure.
27.
Parapet. That portion of the facade, which extends above the roofline.
28.
Pole sign. A sign that is supported by one (1) column, upright, or brace in or upon the ground and which is not attached nor a part of the building.
29.
Political sign. Any advertising sign used in connection with a local, state, or national election campaign.
30.
Roof sign. Any outdoor advertising display sign, installed, constructed or maintained on or above the roof of any building.
31.
Sign. An object or device which is designed, intended, used or located so as to be visible by the public from outdoors for the purpose of advertising the property, establishment or enterprise, including goods and services; upon which the sign is located. This definition shall include all parts, portions, frame, background, structure, support and anchorage thereof.
32.
Snipe sign. Any sign of any size, made of any material, including paper, cardboard, wood and metal, when such sign is tacked, nailed, posted, pasted, glued, or otherwise attached to trees, poles, fences or other objects, and the advertising matter appearing thereon is not applicable to the premises upon which said sign is located.
33.
Temporary sign. A sign which is constructed of cloth, canvas, light, fabric, cardboard, wallboard, plywood, metal or plastic which is intended to be displayed for a limited period of time.
34.
Vehicular sign. A sign affixed to or painted on a transportation vehicles or trailer, for the purpose of business advertising; however, not to include signs affixed to vehicles or trailers for identification purposes as required by town regulations.
35.
Wall sign. A sign displayed upon or attached to any part of the exterior of a building, including walls, windows, doors, parapets, awnings and roof slopes of forty-five (45) degrees or steeper.
36.
Window sign. Any sign installed or maintained in the window of any building, visible from any public right-of-way.
Article 8. Site Plan Elements
Sec. 8-1 General design.
A.
Screening of residential. Commercial and mixed-use sites abutting a residential zoning district shall provide screening consisting of the following:
1.
An opaque concrete or masonry wall a minimum of six (6) feet in height,
2.
A buffer area of at least ten (10) feet, including the required opaque wall, and
3.
Landscaping, as per the C-NB district.
B.
Screening of mechanical equipment.
1.
All mechanical equipment shall be screened from public view.
2.
Such screening may include any combination of landscaping and non-living opaque materials.
3.
If building materials are to be utilized for screening purposes, such materials shall be consistent with the architectural design of the principal structure.
4.
Screening shall extend at least one foot above the object to be screened.
C.
Illustrative site plan elements. Drawings found in Attachment A represent site plan elements that are appropriate and/or inappropriate for the C-NB district as per this article. They are intended for illustrative purposes only, to guide the property owner and the village through the design intent of the C-NB district and are not to regulate or suggest specific architectural design.
_____Sec. 8-2 Building orientation and placement.
A.
Continuity of design. Buildings shall reflect a continuity of design within the C-NB district obtained by:
1.
Maintaining the building scale or by gradual changes in form;
2.
Maintaining designated building setbacks;
3.
Extending horizontal line of fenestration; and
4.
The reflection of architectural styles and details, design themes, building materials and colors found in surrounding buildings.
B.
Building mass impacts. Design techniques that lessen development impacts along the corridor are encouraged. Such design techniques include the following:
1.
Placing the structure perpendicular to the public right-of-way;

Structure Perpendicular To The Public Right-Of-Way
2.
Creating a courtyard/plaza effect between structures;

Courtyard/Plaza Effect Between Structures
3.
Opening up views between structures with greater setbacks; and

Views Between Structures
4.
Provision of wider landscape buffers along Northlake Boulevard.

Wider Landscape Buffers Along Northlake Blvd.
C.
Corner lots. On corner lots at an intersection of two (2) or more arterial or major collector roads, buildings and structures shall be designed with additional architectural embellishments such as towers, or other design features, to emphasize their locations as gateways and transition points within the community.

Corner Lots
D.
Building envelope, bulk and setback requirement. In order to establish overall building envelope, bulk, and setback provisions within the C-NB district, the following regulations are established for the purposes of this section.
Table 8-2
Proposed Setbacks

Proposed Setback
E.
Commercial strip development discouraged. Minimum lot sizes and limited access drives shall be used to reduce the potential for commercial strip development. Neighboring properties are encouraged to link their parking lots together and to share common driveways.

Commercial Strip Development Discouraged
F.
Prohibited elements. The following elements are prohibited:
1.
Chainlink fences in public view;
2.
Unfinished concrete or concrete masonry walls excluding architectural concrete;
3.
Artificial plants or turf;
4.
Decorative or commercial display objects;
5.
Visible neon;
6.
Elements with highly reflective or bright colored surfaces; and
7.
Other objects that are not consistent with the C-NB district design goals as per the village.
Sec. 8-3 Off-street parking areas.
A.
Shared parking. As part of an approval of a new or expanded use, new construction, substantial renovation, or alteration or expansion of an existing structure, the use of shared parking to reduce overall parking requirements is permitted. The criteria for approval of an application to establish shared parking includes the following factors:
1.
Use of a building or structure for two (2) or more uses, which possess complementary, rather than competing, peak hours of usage.
2.
Preparation of a shared parking study by a qualified professional engineer, architect, or planner.
3.
Execution of an agreement, in a form acceptable to the village, between the owners and tenants of buildings or structures affected by the shared parking. This agreement shall provide:
a.
A means to re-address the shared parking in the event future parking problems or changes in use occur;
b.
A legal description of the land and structures affected;
c.
For a term of at least five (5) years;
d.
A site plan to indicate uses, hours of operation, parking, etc.;
e.
Assurance of the availability of all parking spaces affected by the agreement.
B.
Offsite parking. Offsite parking not included in a shared parking agreement is not permitted within the C-NB district.
C.
Valet parking. The village may authorize the use of valet parking for any use within the C-NB district subject to the following criteria.
1.
Valet parking shall not utilize more than thirty (30) percent of the onsite parking of a use providing such service.
2.
A request to establish valet parking shall contain the following information:
a.
The location of the valet parking booth or area;
b.
The location and number of parking spaces to be utilized for valet parking;
c.
Evidence that the business owns the parking spaces proposed for valet use or a copy of any agreement, lease, etc. which provides the business with the right to use spaces owned by another individual or entity for valet parking;
d.
The impact of the valet parking service on users who do not patronize the service;
e.
The hours of operation;
f.
Location and text of any signage associated with the valet parking, spaces; and
g.
Buffering or screening that is necessary to mitigate any visual or noise-related impacts on any adjacent residential properties.
D.
Pedestrian circulation in parking facilities. Parking facilities and driveways shall be designed to maximize the safety and convenience of pedestrians walking between parked cars and business entrances as well as between external points and locations on site delineated with special pavement. Pedestrian walkways shall be integrated as follows:
1.
Into the interior and/or perimeter landscaping of parking lots;
2.
Constructed with a specialty paving or similarly firm and decorative surface; and
3.
At least five (5) feet in width; and separated from vehicular and parking areas by grade, curbing and/or vegetation, except for necessary ramps.
E.
Loading facilities. Loading spaces shall not be located within one hundred (100) feet of Northlake Boulevard or other public rights-of-way, excluding alleys.
1.
Loading docks, solid waste facilities, recycling facilities and other service areas shall be placed to the rear or side of buildings and screened from adjacent residential uses.
2.
Screening and landscaping shall prevent direct views of the loading areas and their approaches from adjacent properties or from the public right-of-way.
a.
Screening and landscaping shall also prevent spillover glare, noise, or exhaust fumes.
b.
Screening and buffering shall be achieved through walls, fences and landscaping and shall be opaque and completely obscure the contents and facilities.
c.
Recesses in the building, or depressed access ramps may be used.
3.
Service access shall be behind the building or from secondary streets wherever possible, and screened from general view.
F.
Drive-throughs. In the event that drive-throughs are permitted by use or as a special exception, the village shall review the site plan for the following minimum standards:
1.
Adequate stacking for six (6) vehicles per lane at twenty (20) feet per vehicle;
2.
Proper ingress/egress to the facilities so as to preclude entering and exiting directly from a public right-of-way;
3.
Adequate space for a by-pass lane; and
4.
Any other design deemed appropriate by the village.
Sec. 8-4 Pedestrian amenities.
A.
General design. Uses shall contribute to pedestrian-friendly focal spaces through the provision of aesthetic walking paths, pedestrian spaces with furnishings, public art, generous plantings, marked crosswalks, and vehicular parking and circulation areas clearly separated from such pedestrian amenities.
1.
Sidewalks shall be of barrier-free design to the greatest extent possible.
2.
Pedestrian circulation systems shall include gathering/sitting areas.

Pedestrian Amenities
B.
Width and materials. Sidewalks shall be a minimum of five (5) feet in width and shall be constructed of stone, textured cement, concrete pavers, or brick.
C.
Pedestrian entrances.
1.
Major public entrances shall be located along Northlake Blvd.
2.
A clearly designated pedestrian walkway and similar pedestrian-oriented facilities shall be provided from public sidewalks to public entrance or walkways within a commercial site, as well as between abutting commercial properties.
D.
Pedestrian walkway to Earman River (C-17 Canal). A clearly designated pedestrian walkway shall be provided from public sidewalks to the rear lot line on all properties located between US Highway 1 and a point 200 feet east of the centerline of Southwind Drive. This requirement shall not apply if the location of existing buildings make it impractical.
Sec. 8-5 Site and street furniture.
A.
Exterior lighting. All fixtures used for exterior lighting (building and site) are to be selected for functional and aesthetic value. Decorative pedestrian-scale lighting shall be provided at a height of no more than ten (10) feet with standards constructed from steel, cast iron, aluminum or spun concrete. Lighting standards shall be of a consistent architectural style and shall complement the predominant architectural theme.
B.
Street furniture. Additional amenities such as drinking fountains, benches and shelters or kiosks shall be provided and supplemented with open spaces.
C.
Dumpsters and similar containers. Dumpsters and similar containers, including recycling bins, compactors, etc., shall be screened in a manner consistent with the following:
1.
Similar containers shall be located only at the rear of a building or structure.
2.
Enclosures shall be constructed in a manner consistent with the architectural style, color, materials, etc., of the principal building, and shall screen the dumpsters on all four (4) sides of the enclosure from public view.
a.
An opaque concrete wall or similar material shall screen both sides and the rear of such facilities.
b.
The front of a screen enclosure shall be gated and shall consist of durable opaque materials consistent with the overall design of the project.
c.
Dependent upon the location of an enclosure on the site, landscaping may be required in addition to the opaque screening material.
3.
Alternative dumpster location. When it is not possible to locate the enclosure in the rear of the site, the dumpster shall be enclosed by landscaping to the greatest extent possible.
4.
Access to the dumpster should be provided from a secondary street.
5.
Enclosures are to be designed to provide space to accommodate recycling bins.
D.
Sidewalks. Sidewalks shall be provided along all roadways on both sides of the street. At corners handicapped ramps shall be provided and sidewalks shall continue across driveway and parking lot surfaces using decorative paving materials to delineate crosswalks. All new construction or substantial renovation of existing buildings and structures shall include one (1) or more-clearly delineated walkways from the public sidewalk to the private sidewalk, arcade, pedestrian way, etc. Examples of other complementary materials include the following:
1.
Paver blocks or alternative style or color;
2.
New and used brick; and
3.
Concrete stamped with a pattern.
E.
Retaining walls. Retaining walls shall be constructed as necessary, provided such walls are constructed utilizing the same architectural style, materials, and color of the principle structure.
F.
Alley screening walls. All new construction or substantial renovation of existing buildings and structures shall construct or reconstruct a solid masonry or concrete wall a minimum of six (6) feet in height.
1.
The wall shall be located along the rear property line of the parcel being improved.
2.
Chain link and wooden fences are prohibited.
3.
Properties within the marine district of the C-NB district are exempt from this requirement.
G.
Underground utilities. The village may require existing overhead utilities to be placed underground when located on properties subject to new construction or substantial renovation.
H.
Shopping carts. If a use requires shopping carts, they shall not be allowed to accumulate in any outside area including parking lots and loading areas, and shall be removed from cart corrals in a timely manner and relocated to designated storage areas near the principle structure.
I.
Mailboxes. Mailboxes, including special drop boxes, may be clustered within buildings, grouped under a kiosk, or individually freestanding. In all cases the design and installation of mailboxes shall comply with the following standards:
1.
The village and the U.S. Postal Service shall approve the size, type, and location of mailboxes.
2.
Mailboxes shall be landscaped consistent with and architecturally compatible to the development.
J.
Satellite dishes. Satellite dishes may be installed provided the dishes are not visible from any street, and the color is compatible with the surrounding environment. Plans for the installation of communication equipment, such as dishes and antennas, shall be submitted for review during the planning phase of a project.
K.
Telephones, vending machines, and newspaper racks. All public telephones, vending machines, newspaper racks, and facilities dispensing merchandise or services on private property shall be enclosed within a building, enclosed within a structure, attached to a building, or enclosed in a separate area.
1.
Attached and freestanding structures shall be landscaped consistent with and architecturally compatible with the principal structure.
2.
Public telephones. Wall-mounted and freestanding public telephones visible from a public right-of-way shall be fully or partially enclosed.
3.
Vending machines.
a.
Vending machines dispensing beverages, food, ice, and related consumer products shall not be visible from a public right-of-way.
b.
Vending machines may be located in outdoor enclosures, provided such enclosures are constructed utilizing the same architectural style, materials, and colors as the principal structure.
(Ord. No. 05-2003, § 1, 2-27-03; Ord. No. 2011-02, § 3, 2-10-11; Ord. No. 2011-05, § 2, 4-14-11; Ord. No. 2012-07, §§ 2—4, 7-26-12; Ord. No. 2020-06, § 23(Exh. 6), 9-24-20; Ord. No. 2024-17, § 2, 11-7-24)
The provisions of this article shall be subject to the following provisions and exceptions:
A.
Chimneys, water tanks, radio or television towers, telecommunications antenna/towers, church spires, elevator lofts, flagpoles and parapet walls may be erected above the height limits herein established.
A-1.
No addition to any building and no structure or object shall be erected, placed or maintained or built to a height which exceeds four (4) stories or sixty (60) feet where any portion of said building or of the property upon which it is located is within five hundred (500) feet of any R-1, single-family dwelling district, except in the C-MU and C-3 zoning districts where the height limits and maximum height in feet are defined in sections 45-31 and 45-34.1.
B.
Swimming pools shall be set back at least seven and one-half (7½) feet from the back property line measured from the rim of the pool and not less than five (5) feet from the side property line including the two-and-one-half-foot walk around the pool. The highest projection of the swimming pool shall not exceed two (2) feet. Outdoor fireplaces not exceeding six (6) feet in height may be erected and maintained, said structure, however, shall not be erected within five (5) feet of any rear lot line.
(a)
Swimming pools may be enclosed by screening provided same are not erected closer than five (5) feet from the side and rear yard lines.
(b)
No swimming pool shall be located in the area lying between the front property line and the front building line in the R-1 and R-2 zoning districts.
C.
Detached garages not more than one (1) story in height may be erected and maintained within seven and one-half (7½) feet of the rear line of any such lot.
D.
Walls and fences built within the area between the property line and the building setback line shall not exceed six (6) feet in height; provided, however, that no walls or fences may be erected between the required front yard setback and the front property line except as provided in subsection D-2 below, nor may walls or fences exceed four (4) feet in height for a distance of forty (40) feet from any body of water located within the village. On corner lots, walls or fences shall not exceed four (4) feet in height for a distance of twenty (20) feet from the side property line.
On all building permits for walls or fences greater than four (4) feet in height that are to be located outside building setback lines, there shall be a prominent notice that a village building permit in no way offsets the deed covenants, and that the applicant should also check the deed covenants to protect himself.
D-1.
On vacant lots adjacent to any waterbody, a non-opaque galvanized metal, wrought-iron or chain link fence no greater than four (4) feet in height may be constructed within five (5) feet of the seawall or bulkhead line to restrict access to the waterbody from the vacant lot. Chain link fences may also be vinyl coated.
D-2.
Where a parcel within a residential zoning district abuts a parcel within a commercial or industrial zoning district, a wall or fence not exceeding six (6) feet in height may be erected along the side property line between the front yard setback and the street line provided that such wall or fence is set back at least three (3) feet from the front property line or as otherwise required to comply with the sight triangle and clear zone requirements of the Florida Department of Transportation's Manual of Uniform Minimum Standards for Design, Construction, and Maintenance of Streets and Highways, whichever is greater.
D-3.
The restrictions on the height of walls and fences set forth in this section shall not apply to properties within the Public (P) zoning district where the Village Council determines, in the exercise of its discretion, that a greater height is necessary to protect the public health, safety or welfare.
D-4.
The height of a gate affixed to a wall or fence shall not exceed the maximum wall or fence height, provided, however, that on residential lots, one (1) gate up to twenty (20) feet in width (inclusive of gate posts) may exceed the maximum height by up two (2) feet.
E.
In the event one (1) lot, or portion thereof, and the whole or a portion of a contiguous lot, all in one (1) ownership, shall be used as one (1) building site for one (1) residence building, and its appurtenant outbuildings permitted by this ordinance, then while so owned and used the side lines and rear line of such site shall be deemed to be the side and rear lot lines of such sites.
F.
No business, professional, or commercial activity shall be conducted upon any portion of real property zoned R-1 single-family dwelling district, R-2 multiple-family dwelling district and R-3 apartment dwelling district or within any dwelling thereon or upon a dock, pier or other waterside structure appurtenant thereto and attached to such real property, other than as provided by section 17-2.
G.
In all multifamily residential buildings two (2) stories or greater in height, and in all commercial buildings over four (4) stories in height, which are not equipped with elevators provided with standby emergency power and having minimum cab dimensions which will permit the use of the elevator cab by normal size emergency ambulance stretchers, and in all commercial buildings two (2) stories to four (4) stories in height which are not equipped with elevators having minimum cab dimensions which will permit the use of the elevator cab by normal size emergency stretchers, there shall be a minimum of one (1) access stairway serving every story. Such stairway shall have the following minimum dimensions:
(1)
Minimum width of stairway to be five (5) feet.
(2)
Minimum dimensions of all landings to be ten (10) feet by six (6) feet, six (6) inches.
H.
Patios connected to the rear of a dwelling unit may be enclosed by screening provided there shall be a rear yard of not less than fifteen (15) feet measured from the rear of the screened enclosure to the rear lot line.
I.
There shall be a front yard of not less than forty (40) feet measured from the street line to the front building line in the case of Lots 11 to 35 inclusive, Block 3, as shown on the plat of Village of North Palm Beach, Plat 1, recorded in plat book 24, page 205, Public Records of Palm Beach County, Florida.
J.
Whenever, by this ordinance, off-street parking is required in any commercial or mixed-use district or in any R-3 apartment dwelling district, no such parking facilities shall be hereafter constructed as follows, in addition to any specific requirements of the zoning district: until a permit therefor shall have been issued by the building inspector, and until the plans and specifications therefor are such that:
a.
Such off-street parking area is designed with appropriate means of vehicular access to a public street or alley. The maximum width of a residential accessway to an off-street parking or other vehicular use area shall be twenty (20) feet for two-way vehicular movement and ten (10) feet for one-way vehicular movement, measured at the narrowest point. For commercial uses, two-way accessways shall be twenty-four (24) feet and may be wider only on county and state roads, subject to approval by county and state transportation officials.
(i)
No more than one (1) two-way accessway shall be permitted for any street frontage up to one hundred (100) lineal feet or no more than two (2) one-way accessways shall be permitted for any street frontage up to one hundred (100) lineal feet, such standards to be applicable to any property under one (1) ownership.
(ii)
Where such ownership involves over one hundred (100) feet of street frontage, one (1) additional two-way or two (2) additional one-way drives may be permitted for each additional one hundred (100) feet of frontage or major fraction thereof, except where restricted by other provisions of this Code or by county and state transportation regulations.
b.
Such off-street parking area is designed with appropriate vehicular maneuvering areas. Each required parking space shall measure at least 9 feet by 18 feet.
c.
Such off-street parking area is paved with an asphaltic or concrete surfacing, or other material designed to prevent dust.
d.
Such off-street parking area is so constructed, graded and surfaced as to prevent surface water from draining onto public right-of-way, or on adjoining properties, the outlets for such surface waters to be connected directly or indirectly to storm sewer conduits terminating in existing publicly controlled waterways or in other seepage areas approved by the building department.
e.
Such off-street parking areas shall be used for vehicular traffic only, with no sales, dead storage, repair work, dismantling or servicing of any kind unless expressly permitted by the zoning of the district in question.
f.
If lighting of such areas is to be provided, the plans therefor shall be such that such lighting shall reflect away from any public street and at such an angle as to prevent glare or undue illumination of residential properties in the neighborhood.
g.
Parking lots shall be landscaped as provided in the landscaping regulations in Article VIII (section 45-81 et seq.).
h.
Parking lots shall be designed and improved to facilitate loading and unloading. There shall be adequate space for standing, loading and unloading services to avoid undue interference with public use of streets or alleys.
K.
No carnival, fair, amusement park or circus shall be carried on in any residential or commercial zoning district in the Village of North Palm Beach, including zoning districts R-1, R-2A, R-3, C-MU, C-S and C-G; provided, however, that a carnival, fair or circus may be carried by a nonprofit organization to collect funds to further the purposes of such organization at the premises where the organization is located within the Village of North Palm Beach. No such carnival, fair or circus shall extend for more than three (3) consecutive days, and no such carnival, fair or circus may be open to the public between the hours of 10:00 p.m. and 10:00 a.m. during any day. A permit for such permitted carnival, fair or circus must be obtained from the office of the village manager. There will be no charge or fee for such permit.
L.
No gasoline or oil filling stations and no service station shall be erected within five hundred (500) feet of any church, hospital, school or other similar institution where large numbers of pedestrians congregate, nor within five hundred (500) feet of the location in said village of another gasoline or oil filling station or service station. No church, hospital, school or similar institution where large numbers of pedestrians congregate shall locate or operate within five hundred (500) feet of any gasoline or oil filling station or service station.
The method of measurement that shall apply in such cases shall be by measurement of the airline distance made or taken from the nearest boundary of the lot or premises of a gasoline or oil filling station or service station to the nearest boundary of the lot or premises of a church, hospital, school or other similar institution.
M.
Building height regulations.
(1)
Within the area of the Village of North Palm Beach which lies north of the Intracoastal Waterway and west of U.S. Highway No. 1, no building or structure shall exceed sixteen (16) stories or one hundred sixty (160) feet.
(2)
Within the area of the Village of North Palm Beach which lies north of the Intracoastal Waterway and east of U.S. Highway No. 1, no building or structure shall exceed twenty-two (22) stories or two hundred twenty (220) feet.
(3)
Within the area of the Village of North Palm Beach which lies south of the Intracoastal Waterway and east of U.S. Highway No. 1, no building or structure shall exceed four (4) stories or forty (40) feet, except in the C-MU zoning district where the height limits are defined in section 45-31.
(4)
Within the area of the Village of North Palm Beach which lies south and west of the Intracoastal Waterway and west of U.S. Highway No. 1, no building or structure shall exceed four (4) stories or forty (40) feet, except in the C-MU and C-3 zoning districts where the height limits are defined in sections 45-31 and 45-34.1.
N.
Location of business for retail sales of alcoholic beverages.
(1)
No licensed retail sales of alcoholic beverages shall be carried on where the proposed place of business is within one thousand (1,000) feet of a church or other place of worship, public or private school, hospital, park or playground, or a place of business of another licensed retail seller of alcoholic beverages; provided further, that no licensed retail sales of alcoholic beverages shall be carried on in the C-3, Regional Business District, where the proposed place of business is within five hundred (500) feet of a church, synagogue, temple or other place of worship.
(2)
The measurements provided above shall be made or taken from the main front entrance or entrances of such church or other place of worship, public or private school, hospital, park or playground, or a place of business of another licensed retail seller of alcoholic beverages, to the main front entrance of the applicant's proposed place of business along the route of ordinary pedestrian traffic.
(3)
The restrictions of subsection N.(1) shall not apply to the sale of beer, ale or wine at retail, not to be consumed on the premises.
(4)
The restrictions of subsection N.(1) pertaining to distances from other licensed sellers of alcoholic beverages shall not apply to:
a.
Any bona fide restaurant operating under a Florida 4-COP-SRX license as a restaurant with full kitchen facilities, and fifty-one (51) percent or more of the gross sales are derived from the sale of food and non-alcoholic beverages (alcoholic beverages are to be served only when the restaurant is open for the sale and service of food);
b.
Any bona fide restaurant operating under a Florida 2-COP license as a restaurant with full kitchen facilities where:
(i)
the entire restaurant, including, but not limited to, kitchen facilities, work and storage areas, restrooms and eating areas, consists of at least two thousand (2,000) square feet; and
(ii)
Alcoholic beverages are served for on premises consumption only when the restaurant is open for the sale and service of food.
(5)
Nothing in subsection N.(1) shall prohibit the conduct of licensed retail sales of alcoholic beverages within one thousand (1,000) feet of the North Palm Beach Country Club.
(6)
Churches and other houses of worship, public and private schools, hospitals, parks, and playgrounds may locate and operate within one thousand (1,000) feet of an existing business licensed for the retail sale of alcoholic beverages, and, in such event, the existing business engaged in the licensed retail sale of alcoholic beverages shall not be in violation of section 45-36N.(1).
O.
Xeriscape landscaping practices. Properties within all zoning districts are encouraged to utilize xeriscape landscaping practices to simultaneously enhance the appearance of the property while requiring less water and energy. Xeriscape practices in the village shall be based on the latest published South Florida Water Management District xeriscape manual.
P.
Maximum floor-area ratio. Maximum gross floor area ratios for commercial development within the area of the village defined by PGA Boulevard on the north, Lake Worth on the east and the Intracoastal Waterway on the south and west shall be limited as follows: retail - 0.25; professional office - 0.35; and mixed-use - 0.35.
Q.
Outdoor seating.
(1)
Applicability. Outdoor seating shall be permitted as an accessory use to a building in which a food service establishment is operated, provided that:
a.
The outdoor seating area is adjacent to that portion of the food service establishment which is inside the building.
b.
The outdoor seating is located on property which is either owned or leased by the adjacent food service establishment or the landlord of such food service establishment. (See exceptions in subsection (6))
c.
The outdoor seating can be accommodated without impeding the access of the general public, including persons with disabilities, to the portion of the food service establishment which is located inside the building, or to any other commercial business or other use.
d.
The outdoor seating can be accommodated without creating a need for additional parking spaces which could not be provided on the same site as the building for which the outdoor seating would be an accessory use or would create a non-conforming status for existing parking provided for such building. (See exceptions in subsection (6))
e.
No outdoor seating shall be permitted for adult entertainment establishments.
(2)
Permitting process. An applicant for approval of outdoor seating shall include the proposed outdoor seating as part of an overall application for a building permit and/or site plan and appearance approval or shall seek amendment of an existing building permit and/or site plan and appearance approval to allow for outdoor seating, pursuant to the applicable provisions of this Code. Every application involving outdoor seating shall include the following, in addition to and not in place of anything else which may otherwise be required by any other provision of this Code:
a.
A site plan, drawn to scale, which shows at least the building for which outdoor seating will be an accessory use; the location of the food service establishment which will use the outdoor seating; the location of the outdoor seating and all related fencing screening, or dividing materials; the location of any sidewalks or other pedestrian walkways or passageways which are adjacent to or will be affected by the outdoor seating; and the location of all existing or additional parking for such building.
b.
A copy of the written consent of any person or business who other than the applicant owns or leases any property, including any sidewalk or other public passageway, upon [which] the outdoor seating would be located.
c.
Photographs, renderings, or samples showing the style and color of all furnishings, fencing, screening, or dividing material to be used for or in conjunction with the outdoor seating.
(3)
Conditions of outdoor seating. Outdoor seating shall comply at all times with the following conditions:
a.
Outdoor seating shall be arranged, when in use, in a manner that allows a pedestrian walkway in compliance with applicable accessibility, building, and fire codes.
b.
Outdoor seating located on a pedestrian walkway which provides access to more than one (1) occupant of a building, as in a shopping center, shall be arranged, when in use, in a manner that maintains a passage of not less than five (5) feet in width.
c.
Outdoor seating of an applicant shall not be located on any sidewalk, passageway, or other property adjacent to any other business.
d.
Outdoor seating shall not occupy any area designated for parking. (See exceptions in subsection (6))
e.
Outdoor seating which is used for the service and sale of food or beverages of any kind within the outdoor seating area, shall be physically separated and visually distinct from any immediately adjacent public passageway or walkway by means of approved fencing or screening material which is not less than two (2) feet in height, by means of one (1) or more planter boxes and other plant container, by means of some other approved divider, or any combination of such means, but not including tables, chairs or other seating.
f.
Outdoor seating areas may only contain tables, chairs, umbrellas and/or awnings and required fencing or screening materials. All such equipment shall be compatible in color and style with the exterior of the building and shall not contain or have affixed to it any sign, lettering or advertising of any kind.
g.
Outdoor seating shall be maintained in a secure manner, whenever the food service establishment is closed to the public.
h.
Establishments with outdoor seating with food and beverage service shall meet all health code and other applicable code requirements of restaurants.
i.
Any permanent or temporary structures associated with outdoor seating, including, but not limited to, awnings and covered roofs shall not encroach into the required building setback areas. Tables, chairs, umbrellas, fencing, screening and dividing materials shall not be located closer to the property line than two-thirds (⅔) of the required front, side or rear building setback. (See exceptions in subsection (6))
(4)
Limitations on use. Except for outdoor seating located in an inner court:
a.
All sales and service of food and beverages in an outdoor seating area are prohibited between the hours of 10:30 p.m. and 7:00 a.m., Sunday through Thursday, and between the hours of 11:00 p.m. and 7:00 a.m., Friday through Saturday.
b.
Outdoor seating areas shall be in compliance with the village's noise regulations.
(5)
General requirements. Outdoor seating which increases the total number of seats available at a food service establishment shall be considered an expansion of use. Such outdoor seating shall be included in any calculation of the total number of seats provided by the food service establishment, but not limited to, parking, restroom facilities and business taxes.
(6)
Special requirements for C-MU and C-3 zoning districts. In the C-MU and C-3 zoning districts only, the preceding requirements for outdoor seating are modified as follows:
a.
Outdoor seating may be provided on sidewalks that have been constructed on sidewalk easements that were required by this Code as long as this seating does not unduly restrict pedestrian movement. Outdoor seating may not be provided on sidewalks within the right-of-way of US Highway 1, Yacht Club Drive, Anchorage Drive, Lighthouse Drive, Ebbtide Drive, or Northlake Boulevard.
b.
Outdoor seating may be provided within build-to zones required by this Code.
c.
Outdoor seating may be provided on an area designated for parking and/or loading without providing additional parking spaces. However, permission for such outdoor seating would be on a provisional basis and would be subject to revocation as follows:
i.
Permission may be revoked by the community development director if there is evidence that the permission is contributing to spillover parking on nearby properties.
ii.
Permission would be automatically revoked if the code enforcement special magistrate issues an order confirming a violation of a parking-related provision of this Code.
R.
Formerly developed vacant lots.
(1)
Applicability. This section shall apply to all lots within the village where the principal structure has been demolished and no principal use currently exists on the property.
(2)
Ground treatment. Vacant lots regulated by this section shall be cleared of construction material and debris, shall be properly graded and shall be covered with sufficient ground treatment. Existing ground treatment may be used to meet the requirements of this section.
a.
Ground treatment may consist of any combination of living plants, such as grass, ground cover, shrubs, vines, hedges or trees and non-living landscape material such as rocks, pebbles, sand, mulch and decorative paving materials. Non-living landscape material shall be limited to a maximum of twenty (20) percent of the total lot area.
b.
Property owners are encouraged to adhere to xeriscape or "Florida Friendly" (as promulgated by the Florida Yards and Neighborhood Program) landscaping principles and utilize low-maintenance, drought-tolerant landscaping materials and practices.
c.
The clearing and planting must be completed within thirty (30) days of the completion of the demolition of the principal structure. Property owners may continue electrical service to vacant lots regulated by this section for the sole purpose of operating an irrigation system to irrigate living plant material. Electrical service for any other purpose shall be prohibited.
d.
The property owner shall ensure that the property adequately drains so as to alleviate standing water.
(3)
Foundations, driveways and accessory structures. Slab foundations and other structural features remaining from demolished structures must be removed from the lot. All accessory structures (including swimming pools), parking areas and driveways shall be removed from vacant lots, with the exception of seawalls, driveway aprons located within adjacent rights-of-way and irrigation systems. Swimming pools shall be removed or filled in accordance with all applicable building code requirements and state and local health department regulations.
(4)
Existing trees and vegetation. All existing native and non-invasive trees and palms shall be preserved to the maximum extent possible. All existing non-native and exotic species, as listed in the most current edition of the Florida Exotic Pest Plant Council's List of Invasive Plant Species, shall be removed from the lot.
(5)
Planting plan. Simultaneously with the application for a demolition permit, the lot owner shall submit a planting plan to the community development department indicating the method of ground treatment and identifying existing trees and palms to be preserved and non-native and exotic species to be removed. The department shall not issue the demolition permit until the planting plan has been submitted and approved.
(6)
Maintenance. The lot shall be maintained in accordance with the requirements of chapters 14 and 15 of the village Code of Ordinances. Maintenance shall terminate upon the commencement of active construction activities in accordance with a valid and active building permit. If construction activities cease for more than thirty (30) days or the building permit expires, a new planting plan shall be submitted and implemented.
(7)
Exemption.
a.
A lot owner shall be exempt from submitting a planting plan and demolishing the existing driveways, parking areas and accessory structures if the property will be redeveloped within one hundred and twenty (120) days of demolition, as evidenced by the submittal of an application for a building permit or other development approval at the time of demolition. The lot owner shall certify that the existing driveways, parking areas and accessory structures will be incorporated into the new construction plan or are necessary to facilitate future construction activities, whichever is applicable. Lot owners shall limit access to swimming pools remaining on vacant lots in accordance with the applicable building code requirements for new construction.
b.
The exemption shall remain in place for so long as the permit or approval remains active, provided that active construction activities commence within the one hundred and twenty-day period. In order to qualify for the exemption, the lot owner shall submit an affidavit stating that the above requirements shall be met at the time the application for the demolition permit is submitted.
c.
A property owner may apply for one extension of the exemption period for a period of time not to exceed sixty (60) days.
d.
In the event: (i) construction activities do not commence within the one hundred and twenty-day period; (ii) the permits or other approvals facilitating redevelopment of the property expire; or (iii) construction activities commence and then cease for a period of more than thirty (30) days, the property owner shall comply with all requirements of subsections (2) through (6) above within thirty (30) days.
(8)
Existing docks or piers. An existing dock or pier adjacent to a formerly developed vacant lot may remain subject to the following conditions:
a.
The use of the dock or pier shall be limited to one vessel;
b.
The dock or pier shall only be used for the personal enjoyment of the lot owner and shall not be rented or leased to any third party or used for any commercial purpose;
c.
No sewer or electrical services to the dock or pier shall be permitted;
d.
No live aboard vessels shall be permitted;
e.
The upland portion of the lot shall not be used for storage, parking or any other accessory use or structure until the principal use or primary structure is completed; and
f.
Access to the dock or pier may be restricted as provided in section 45-36(D-1) above.
(9)
Enforcement. Violations of this section shall be enforced as code enforcement violations in accordance with article VI of chapter 2 of the village Code of Ordinances.
S.
Additional regulations applicable to medical or dental offices or clinics.
(1)
Purpose. These regulations are enacted to discourage the misuse and abuse of narcotics and other controlled substances such as pain medications, and to address the impacts upon land uses that are associated with businesses that operate principally to dispense pain medications for chronic pain but without the services of typical medical offices that provide thorough on-site examinations, medical treatments or procedures and continued medical oversight. Such businesses have been determined to be associated with the excessive use of, addiction to, and subsequent illegal sales and distribution of controlled substances.
(2)
Applicability. This section applies to all medical or dental offices or clinics within the village.
(3)
On site dispensing of controlled substances. On-site dispensing of controlled substances that are identified in Schedules II, III or IV in Sections 893.03, 893.035 or 893.0356, Florida Statutes, is strictly prohibited, unless otherwise expressly permitted by statutory or general law. However, the following are exempt from this prohibition:
a.
A health care practitioner when administering a controlled substance directly to a patient if the amount of the controlled substance is only intended to treat the patient during that particular treatment session.
b.
A pharmacist or health care practitioner when administering a controlled substance to a patient or resident receiving care as a patient at a hospital, nursing home, ambulatory surgical center, hospice, or intermediate care facility for the developmentally disabled that is licensed by the State of Florida.
c.
A health care practitioner when administering a controlled substance in the emergency room of a licensed hospital.
d.
A health care practitioner when administering or dispensing a controlled substance to a person under the age of sixteen (16).
e.
A health care practitioner when dispensing a one-time, seventy-two (72) hour emergency re-supply of a controlled substance to a patient.
(4)
Acknowledgment of regulations. The health care practitioner responsible for the operation or supervision of any medical or dental office or clinic shall execute an affidavit acknowledging the regulations set forth in subsection (3) above prior to payment of the required business tax, and annually thereafter upon renewal of same prior the issuance of a business tax receipt. Failure or refusal to execute the required affidavit shall constitute prima facie evidence that the subject medical or dental office or clinic is operating in violation of the code of ordinances, which may result in code enforcement action, revocation of business tax receipt, and/or any other action permitted by law.
(5)
Applicability to existing uses. The prohibition set forth in subsection (3) above shall not apply to existing pain management clinics, as defined by Chapters 458 and 459, Florida Statutes, operating as of February 11, 2010, provided that such establishments comply with all other applicable laws, rules and regulations, including statutory registration requirements.
T.
Additional regulations applicable to pharmacies and drug stores.
(1)
Purpose. These regulations are enacted to discourage the misuse and abuse of narcotics and other controlled substances such as pain medications, and to address the impacts upon land uses that are associated with pharmacies affiliated with medical or dental offices or clinics that operate principally to dispense pain medications. Such businesses have been determined to be associated with the excessive use of, addiction to, and subsequent illegal sales and distribution of controlled substances.
(2)
Applicability. This section applies to all pharmacies within the village, including those located within drug stores.
(3)
Limitation. No more than fifteen percent (15%) of the total number of prescriptions sold within a thirty (30) day period can be derived from the sale of Schedule II controlled substances as listed in Section 893.03, Florida Statutes. All pharmacies, including those located within drug stores, shall be staffed by a state licensed pharmacist who shall be present during all hours the pharmacy is open for business. This restriction shall not apply to a pharmacy operating as an accessory use to a facility licensed under Chapter 395, Florida Statutes (e.g. hospital).
(4)
Acknowledgment of regulations. The owner or operator of a pharmacy or drug store shall execute an affidavit acknowledging the regulations set forth in subsection (3) above prior to payment of the required business tax, and annually thereafter upon renewal of same prior the issuance of a business tax receipt. Failure or refusal to execute the required affidavit shall constitute prima facie evidence that the subject pharmacy or drug store is operating in violation of the code of ordinances, which may result in code enforcement action, revocation of business tax receipt, and/or any other action permitted by law.
U.
Use of portable storage containers and roll-off dumpsters in all zoning districts.
(1)
Purpose. The purpose of this subsection is to regulate the use of:
a.
Shipping containers and all types and brands of portable or mobile storage containers, including portable on demand storage containers, also known as "PODS" (collectively referred to as "portable storage containers"); and
b.
Roll-off construction dumpsters (collectively referred to as "roll-off dumpsters").
(2)
Applicability. These regulations shall apply to all properties located within the village.
(3)
Permit required.
a.
No portable storage container or construction dumpster shall be located on any property for more than seven (7) consecutive calendar days, unless the occupant of the property first obtains a permit from the community development department.
b.
Applicants shall complete and submit a permit application on a form prescribed by the village and pay a permit fee as established by resolution of the village council, provided, however, that the village shall not require a permit fee for a roll-off dumpster where the occupant possesses an active building permit for improvements to the property on which the roll-off dumpster is located.
c.
The community development department may require the applicant to submit documentary evidence to demonstrate that the applicant is either the owner or lessee of the property upon which the portable storage container or roll-off dumpster will be located. Such evidence may include, but is not limited to, a deed or lease agreement.
(4)
Limitations on size and quantity of permitted portable storage containers and roll-off dumpsters.
a.
The village shall not issue a permit for more than one standard size portable storage container, eight (8) feet in height by eight (8) feet in width by sixteen (16) feet in length, on any property.
b.
The village shall not issue a permit for more than one roll-off dumpster, not to exceed four and one-half (4½) feet in height by eight (8) feet in width by twenty-two (22) feet in length (twenty (20) yard capacity), for any property.
(5)
Length of time.
a.
A permit for the placement of a portable storage container or roll-off dumpster shall be valid of a period of thirty (30) consecutive days from the date of permit issuance, provided, however, that a permit for a roll-off dumpster shall be valid for up to one hundred and eighty (180) consecutive days where the occupant possesses an active building permit for improvements to the property on which the roll-off dumpster is located.
b.
In the event of exceptional circumstances, the permit holder for a portable storage container may request an extension for an additional thirty (30) consecutive days. Any request for an extension of time must be in writing, and must include a written justification statement demonstrating "good cause" as to why the initial thirty (30) day period should be extended. The decision to grant or deny the request for an extension of time shall be within the sole discretion of the village, and the village shall charge an additional fee for any extension of time.
c.
If ongoing construction continues on the property past one hundred and eighty (180) consecutive days, the permit holder for a roll-off dumpster may request one or more extensions of time of up to ninety (90) consecutive days each. For the purpose of this section, ongoing construction means construction-related activities are being carried out on a continuing basis pursuant to a valid permit, with regularly scheduled successful inspections. The community development director may revoke a permit at any time if the director determines that ongoing construction is no longer occurring on the property. The property owner may challenge the director's revocation of a permit or any extension thereof by requesting a hearing before the code enforcement special magistrate.
d.
Not more than one permit, per calendar year, for a portable storage container or a roll-off dumpster shall be issued by the village to the same occupant of any property, or in the case of multi-family residential property with more than one unit, the same occupant of any unit.
(6)
Additional requirements.
a.
No storage container or roll-off dumpster shall exceed the height of the roofline of the principal building or structure located on the property.
b.
No portable storage container or roll-off dumpster shall be located within a utility easement, drainage easement, right-of-way, front yard area, alley right-of-way or street right-of-way. Notwithstanding the foregoing, a portable storage container or roll-off dumpster shall be placed on the driveway or designated parking area in the R-1 or R-2 zoning districts unless otherwise approved by the community development department.
c.
No portable storage container or roll-off dumpster shall be stored within a required side yard setback between a building and an adjacent street or property line. For non-residential properties, no portable storage container or roll-off dumpster shall be located in any required landscape or buffer area.
d.
No portable storage container or roll-off dumpster shall contain any signage other then the name, address and telephone number of the person or firm engaged in the business of renting or providing the container or dumpster.
e.
No flammable or hazardous materials may be placed, stored or kept in any portable storage container or roll-off dumpster.
f.
The portable storage container or roll-off dumpster must be owned or leased by the occupant of the property and may not be used for living or sleeping purposes or for any use other than storage or disposal of construction debris.
(7)
Severe weather conditions.
a.
Upon the issuance of a tropical storm watch and/or a hurricane watch by the National Weather Service, the occupant of the property on which a portable storage container or roll-off dumpster is located shall use every reasonable and best effort to remove, or to arrange for the removal of, the portable storage container or roll-off dumpster from the property.
b.
In the event removal is not possible, the storage container or the roll-off dumpster and its contents, shall be secured against windloads of up to one hundred and fifty (150) miles per hour.
c.
The occupant of a property upon which a portable storage container or roll-off dumpster is located shall be subject to civil liability and/or code enforcement action for damages and/or code violations caused by an unsecured portable storage container or roll-off dumpster and its contents.
V.
Time-share units and fractional ownership. Time-share units and the fractional ownership of any parcel of real property shall be prohibited in all residential zoning districts. Such prohibition shall not include community residences or vacation rentals as defined and regulated in this chapter.
(Ord. No. 209-70, § 1; Ord. No. 2-71, § 1; Ord. No. 1-72, § 1; Ord. No. 11-74, § 1; Ord. No. 11-75, § 1, 9-11-75; Ord. No. 2-76, § 1, 2-26-76; Ord. No. 3-77, § 1, 2-24-77; Ord. No. 15-85, § 1, 9-12-85; Ord. No. 21-90, § 2, 6-28-90; Ord. No. 7-91, § 1, 3-14-91; Ord. No. 20-95, § 1, 7-27-95; Ord. No. 34-96, § 1, 8-22-96; Ord. No. 3-97, § 1, 1-9-97; Ord. No. 12-97, §§ 3, 4, 2-27-97; Ord. No. 2-98, § 1, 1-8-98; Ord. No. 6-99, § 1, 1-28-99; Ord. No. 03-2002, § 1, 2, 2-14-02; Ord. No. 04-2005, § 1, 2-10-05; Ord. No. 2006-28, § 11, 12-14-06; Ord. No. 2010-21, § 5, 11-18-10; Ord. No. 2011-02, §§ 3, 4, 2-10-11; Ord. No. 2011-09, § 2, 5-26-11; Ord. No. 2014-01, § 2, 1-23-14; Ord. No. 2015-20, § 2, 11-12-15; Ord. No. 2017-23, § 2, 12-14-17; Ord. No. 2019-03, § 2, 6-27-19; Ord. No. 2019-06, § 4, 7-11-19; Ord. No. 2020-06, § 24, 9-24-20; Ord. No. 2021-15, § 2, 9-8-21; Ord. No. 2022-01, § 3, 1-13-22)
A.
Purpose. The historic site overlay district is used to impose special development restrictions on identified areas. The locations of this overlay district are established by the Village based on the need for special protective measures at those locations. The historic site overlay district imposes different standards than those that would otherwise apply.
B.
Definitions. [For purposes of this section, the following words shall have the meaning ascribed to them in this subsection:]
Building. A structure created to shelter any form of human activity. This may refer to a house, barn, garage, church, hotel, or similar structure. Buildings may refer to a historically or architecturally related complex, such as municipal buildings, or a house and barn. Parking lots and garages are hereby deemed to be "buildings."
Cultural resource. A site, object, structure, building or district listed in the Village's register of historic sites.
Demolition. The tearing down or razing of twenty-five (25) percent or more of a structure's external walls.
District. A geographically definable area possessing a significant concentration, linkage, or continuity of sites, buildings, structures, objects, or areas, which are united historically or aesthetically by plan or physical development. A district may be comprised of individual resources which are separated geographically but are linked by association or history.
Object. A material thing of functional, aesthetic, cultural, historical or scientific value that may be, by nature of design, movable, yet related to a specific setting or environment.
Ordinary maintenance. Work which does not require a construction permit and that is done to repair damage or to prevent deterioration or decay of a building or structure or part thereof as nearly as practicable to its condition prior to the damage, deterioration, or decay.
Original appearance. That appearance (except for color) which, to the satisfaction of the village council, closely resembles the appearances of either:
(1)
The feature on the building as it was originally built or was likely to have been built, or
(2)
The feature on the building as it presently exists so long as the present appearance is appropriate, in the opinion of the village council, to the style and materials of the building.
C.
Creation of local register of historic sites. A local register of historic sites is hereby created as a means of identifying and classifying various sites, buildings, structures, objects and districts as historic and/or architecturally significant. The local register will be kept by the director of community development.
D.
Initiation of placement on local register. Placement of sites, buildings, structures, objects or districts on the local register may be initiated by the village council. In addition, placement may be initiated by the owner of the site, building, structure, object or area; or, in the case of a district, by the owner of a site, building, structure, object or area within the proposed district. By adoption of this ordinance, those sites within the Village of North Palm Beach that have been classified as a "Florida historic site" by the Division of Archives, History and Records Management, Florida Department of State, are hereby placed on the local register.
E.
Placement on local register. The following procedure shall be followed for placement of sites, buildings, structures, objects, areas and districts on the local register:
1.
A nomination form, available from the department of community development, shall be completed by the applicant and returned to the department.
2.
Upon receipt of a completed nomination form, including necessary documentation, the director shall place the nomination on the agenda of the next regularly scheduled meeting of the village planning commission. If the next regularly scheduled meeting of the planning commission is too close at hand to allow for the required notice to be given, the nomination shall be placed on the agenda of the succeeding regularly scheduled meeting.
3.
Adequate notice of the planning commission's consideration of the nomination shall be provided to the public at large, and to the owner(s) of the nominated property(ies), at least fifteen (15) days in advance of the meeting at which the nomination will be considered by the council.
4.
The planning commission shall, within thirty (30) days from the date of the meeting at which the nomination is first on the planning commission agenda, review the nomination and write a recommendation thereon for consideration by the village council. The recommendation shall include specific findings and conclusions as to why the nomination does or does not meet the appropriate criteria for listing on the local register. The recommendation shall also include any owner's objection to the listing. If the nomination is of a district, the recommendation shall also clearly specify, through the use of maps, lists or other means, those buildings, objects or structures which are classified as contributing to the historical significance of the district.
5.
Upon receipt of the recommendation from the planning commission to the village council, the nomination shall be placed on the agenda of the next regularly scheduled workshop of the village council.
6.
Following the village council workshop consideration, adequate notice of the village council's consideration of the nomination at a public meeting shall be provided to the public at large (advertisement for public hearing), and to the owner(s) of the nominated property or properties, at least fifteen (15) days in advance of the meeting at which the nomination will be considered by the council.
7.
The village council shall, within ninety (90) days from the date of the meeting at which nomination is first on the council's agenda, review the nomination and vote to accept or reject the nomination. The decision shall include specific findings and conclusions as to why this nomination does or does not meet the appropriate criteria for listing on the local register. The decision shall also include any owner's objection to the listing. If the nomination is of a district, the decision shall also clearly specify, through the use of maps, lists, or other means, those grounds, buildings, objects or structures which are classified as contributing to the historical significance of the district. The nomination form and the council's recommendation shall be sent to the planning commission. The nomination shall then be handled as any other rezoning/amendment to the land use element.
F.
Criteria for listing on local register.
1.
A site, building or district must meet the following criteria before it may [be] listed on the local register:
a.
The site, building or district possesses integrity of location, design setting, materials, workmanship, feeling and association; and
b.
The site, building or district is associated with events that are significant to local, state or national history; or the district site, building, structure or object embodies the distinctive characteristics of a type, period or method of construction, or represents the work of a master, or possesses high artistic values, or represents a significant and distinguishable entity whose components may lack individual distinction.
2.
A site or building located in a local register of historic sites district shall be designated as contributing to that district if it meets the following criteria:
a.
The property is one which, by its location, design, setting, materials, workmanship, feeling and association adds to the district's sense of time and place and historical development.
b.
A property should not be considered contributing if the property's integrity of location, design, setting, materials, workmanship, feeling and association have been so altered that the overall integrity of the property has been irretrievably lost.
c.
Structures that have been built within the past fifty (50) years shall not be considered to contribute to the significance of a district, unless a strong justification concerning their historical or architectural merit is given or the historical attributes of the district are considered to be less than fifty (50) years old.
G.
Effect of listing on local register.
1.
The department may issue an official certificate of historic significance to the owner of properties listed individually on the local register or judged as contributing to the character of a district listed on the local register. The director of public services is authorized to issue and place official signs denoting the geographic boundaries of each district listed on the local register.
2.
Structures and buildings listed individually on the local register or judged as contributing to the character of a district listed on the local register shall be deemed historic and entitled to modified enforcement of the Standard Building Code as provided by Chapter 1, section 101.5 of the Standard Building Code Congress International, Inc.
3.
No demolition, alteration, relocation or construction activities may take place except as provided below.
H.
Certificate of appropriateness.
1.
When required.
a.
A certificate of appropriateness must be obtained from the planning commission before making certain alterations, described below as regulated work items, contributing structures and structures listed individually on the local register.
b.
For each of the regulated work items listed below, the following applies.
i.
Ordinary maintenance. If the work constitutes "ordinary maintenance" as defined in this code, the work may be done without a certificate of appropriateness.
ii.
Staff approval. If the work is not "ordinary maintenance," but will result in the "original appearance" as defined in this code, the certificate of appropriateness may be issued by the director of community development.
iii.
Planning commission approval. If the work is not "ordinary maintenance" and will not result in the "original appearance," a certificate of appropriateness must be obtained from the planning commission before the work may be done.
c.
The following are regulated work items:
i.
Installation or removal of metal awnings or metal canopies.
ii.
Installation of all decks above the first-floor level and/or on the front of the structure.
iii.
Installation of an exterior door or door frame, or the infill of an existing exterior door opening.
iv.
Installation or removal of any exterior wall, including the enclosure of any porch or other outdoor area with any material other than insect screening.
v.
The installation or relocation of wood, chain-link, masonry (garden walls) or wrought iron fencing, or the removal of masonry (garden walls) or wrought iron fencing.
vi.
The installation or removal of all fire escapes, exterior stairs or ramps for the handicapped.
vii.
Painting unpainted masonry including stone, brick, terra-cotta and concrete.
viii.
Installation or removal of railings or other wood, wrought iron or masonry detailing.
ix.
Abrasive cleaning of exterior walls.
x.
Installation of new roofing materials, or removal of existing roofing materials.
xi.
Installation or removal of security grilles, except that in no case shall permission to install such grilles be completely denied.
xii.
Installation of new exterior siding materials, or removal of existing exterior siding materials.
xiii.
Installation or removal of exterior skylights.
xiv.
Installation of exterior screen windows or exterior screen doors.
xv.
Installation of an exterior window or window frame or the infill of an existing exterior window opening.
d.
A certificate of appropriateness must be obtained from the planning commission to erect a new building or parking lot within a district listed on the local register.
e.
A certificate of appropriateness must be obtained from the planning commission to demolish a building, structure or object listed individually on the local register, or designated as contributing to a district listed on the local register.
f.
A certificate of appropriateness must be obtained from the planning commission to relocate a building, structure, or object listed individually on the local register, or designated as contributing to a district listed on the local register.
2.
Criteria for issuing.
a.
The decision on all certificates of appropriateness, except those for demolition, shall be guided by the secretary of the interior's standards for rehabilitation and guidelines for rehabilitating historic buildings and the following visual compatibility standards:
i.
Height. Height shall be visually compatible with adjacent buildings.
ii.
Proportion of building, structure or object's front facade. The width of building, structure or object to the height of the front elevation shall be visually compatible to buildings and places to which it is visually related.
iii.
Proportion of openings within the facility. The relationship of the width of the windows in a building, structure, or object shall be visually compatible with buildings and places to which the building, structure or object is visually related.
iv.
Rhythm of solids to voids in front facades. The relationship of solids to voids in the front facade of a building, structure or object shall be visually compatible with buildings and places to which it is visually related.
v.
Rhythm of buildings, structures or objects on streets. The relationship of the buildings, structures or objects to open space between it and adjoining buildings and places shall be visually compatible to the buildings and places to which it is visually related.
vi.
Rhythm of entrance and/or porch projection. The relationship of entrances and projections to sidewalks of a building, structure or object shall be visually compatible to the buildings and places to which it is visually related.
vii.
Roof shapes. The roof shape of the building, structure or object shall be visually compatible with the buildings to which it is visually related.
viii.
Wall of continuity. Appurtenances of a building, structure or object such as walls, fences, [or] landscape masses shall, if necessary, form cohesive walls of enclosure along a street, to insure visual compatibility of the building, structure, or object to the building and places to which it is visually related.
ix.
Scale of a building. The size of the building, structure or object, the building mass of the building, structure or object in relation to open space, the windows, door openings, porches and balconies shall be visually compatible with the buildings and places to which it is visually related.
x.
Directional expression of front elevation. A building, structure, or object shall be visually compatible with the buildings and places to which it is visually related in its directional character.
b.
In addition to the guidelines provided in paragraph (a) above, issuance of certificates of appropriateness for relocations shall be guided by the following factors:
i.
The historic character and aesthetic interest the building, structure or object contributes to its present setting;
ii.
Whether there are definite plans for the area to be vacated and the effect of those plans on the character of the surrounding area;
iii.
Whether the building, structure or object can be moved without significant damage to its physical integrity; and
iv.
Whether the proposed relocation area is compatible with the historical and architectural character of the building, structure or object.
c.
Issuance of certificates of appropriateness for demolitions shall be guided by the following factors:
i.
The historic or architectural significance of the building, structure or object;
ii.
The importance of the building, structure or object to the ambience of a district;
iii.
The difficulty or the impossibility of reproducing such a building, structure or object because of its design, texture, material, detail or unique location;
iv.
Whether the building, structure or object is one (1) of the last remaining examples of its kind in the neighborhood, the county, or the region;
v.
Whether there are definite plans for reuse of the property if the proposed demolition is carried out, and the effect of those plans on the character of the surrounding area;
vi.
Whether reasonable measures can be taken to save the building, structure or object from collapse; and
vii.
Whether the building, structure or object is capable of earning reasonable economic return on its value.
3.
Procedure.
a.
A person wishing to undertake any of the actions requiring a certificate of appropriateness shall file an application for a certificate of appropriateness, and supporting documents, with the director.
b.
The applicant shall confer with the director concerning the nature of the proposed action and requirements related to it. The director shall advise the applicant of the nature and detail of the plans, designs, photographs, reports or other exhibits required to be submitted with the application. Such advice shall not preclude the planning commission from requiring additional material prior to making its determination in the case. Following the conference with the director, a preapplication conference shall be held with the planning commission if requested by the applicant.
c.
Upon receipt of a completed application and all required submittals and fees, the director shall place the application on the next regularly scheduled meeting of the planning commission allowing for notice as required herein. Applications for certificates of appropriateness may be heard at specially called meetings of the planning commission provided all notice requirements are met. Upon mutual agreement between the applicant and the director, the application may be set for hearing at a meeting later than the next regularly scheduled meeting.
d.
At least fifteen (15) days, but not more than thirty (30) days, prior to the meeting at which the application is to be heard, the director shall give the following notice:
i.
Written notice of the time and place of the meeting shall be sent to the applicant and all persons or organizations filing written requests for notification with the department.
ii.
One (1) advertised notice in a newspaper of general circulation.
e.
The hearing shall be held at the time and place indicated in the notice. The decision of the planning commission shall be made at the hearing.
f.
The planning commission shall use the criteria set forth in paragraph F of this section to review the completed application and accompanying submittals. After completing the review of the application and fulfilling the public notice and hearing requirements set forth above, the planning commission shall take one of the following actions:
i.
Grant the certificate of appropriateness with an immediate effective date;
ii.
Grant the certificate of appropriateness with special modifications and conditions; or
iii.
Deny the certificate of appropriateness.
g.
The planning commission shall make written findings and conclusions that specifically relate the criteria for granting certificates of appropriateness. All parties shall be given the opportunity to present evidence through documents, exhibits, testimony, or other means. All parties shall be given the opportunity to rebut evidence through cross-examination or other means.
h.
The department shall record and keep records of all meetings. The records shall include the vote, absence, or abstention of each member upon each question, all official actions of the planning commission, and the findings and conclusions of the planning commission. All records shall be filed in the department.
i.
Any person aggrieved by a decision reached by the planning commission may appeal the decision to the village council.
j.
No work for which a certificate of appropriateness is required may be undertaken unless a certificate of appropriateness authorizing the work is conspicuously posted on the property where the work is to be performed.
(Ord. No. 24-90, § 1, 6-28-90)
Cross reference— Alcoholic beverages, Ch. 3.
A.
Intent. The purpose and intent of the I-1 light industrial district is to implement the Light Industrial/Business future land use category, as established in the Village of North Palm Beach Comprehensive Plan. The I-1 district provides areas in appropriate locations for certain types of businesses, light manufacturing, processing or fabrication of non-objectionable products not involving the use of material, processes or machinery likely to cause undesirable effects upon the environment or on nearby or adjacent residential or commercial properties.
B.
Definitions. The following definitions shall be used for the purposes of the I-1 light industrial district:
Agriculture, Research and Development: The use of land or buildings for agriculture research and the cultivation of new agricultural products.
Art Studio: An establishment used in the practice of artistic pursuits, including, but not limited to, instruction, for fine arts, music, photography, painting, sculpture, drama, speech, and dance.
Assisted Living Facility: A facility licensed by the agency for health care administration which provides housing, meals and personal care and services to adults for a period exceeding twenty-four (24) hours, as defined in F.S. § 429.02, as amended.
Auto Paint and Body Shop: An establishment engaged in the painting of motor vehicles or performance of major external repairs of a non-mechanical nature.
Auto Service Station: An establishment primarily engaged in the retail sale of gasoline or motor fuels. An auto service station may include accessory activities such as the sale of vehicle accessories or supplies, the lubrication of motor vehicles, the minor adjustment or minor repair of motor vehicles, the sale of convenience food items, or an accessory restaurant.
Broadcast Studio: An establishment primarily engaged in broadcasting visual or aural programs by radio or television to the public including, but not limited to, providing cable and other television services, producing recorded television or radio program materials, and broadcasting commercial, religious, educational and education-based television and radio programming.
Building Supplies: An establishment engaged in the fabrication and/or sale of products to contractors for the construction, maintenance, repair and improvement of real property.
Butcher Shop: An establishment dealing in the dressing and/or retail or wholesale of meat, poultry or fish.
Car Wash: A permanent establishment engaged in washing or detailing motor vehicles, which may involve production line methods with a conveyor, blower, or other mechanical devices, and which may employ some hand labor. Detailing includes hand washing and waxing, striping, and interior cleaning.
Catering Service: An establishment where food and beverages are prepared and delivered for consumption off the premises. A catering service may also provide personnel, serving equipment, and decorations.
Chipping and Mulching: An establishment using equipment designed to cut tree limbs, brush or wood construction debris into small pieces for use as mulch.
Commercial Greenhouse: An establishment having roofs and walls made of rolled plastic or similar materials used for the indoor cultivation of plants, which may include hydroponic farming.
Communications Panel Antennas, Commercial: A tower with the principal use of facilitating transmissions for AM/FM radio, television, microwave and cellular telephone and includes transmission towers, antennas and accessory equipment and structures.
Community Vegetable Garden: A plot of land used primarily as a vegetable garden, which is cultivated and harvested by a group of residents from the surrounding area.
Data and Information Processing: An establishment used for business offices of an industrial nature, including, but not limited to, corporate centers, mail processing and telemarketing centers. Such uses are generally not frequented by the general public.
Day care center: An establishment that provides care, protection and supervision for children when licensed by the Palm Beach County Health Department, or adults when licensed by the Agency for Health Care Administration, not related by blood or marriage or foster care responsibility, for a period of less than twenty-four (24) hours per day. Day care does not include nighttime or overnight care.
Dispatching Office: An establishment providing services off-site to households and businesses using land-based communications. Typical uses include janitorial services, pest control services, and taxi, limousine, and ambulance services.
Dog Daycare: An establishment providing daytime care and training for domestic dogs.
Farmers Market: An establishment providing the wholesale sale of farm produce.
Film Production Studio: The use of a lot or building for the production of films, videos or other recordings for exhibition or sale.
Fitness Center: An enclosed building or structure containing multi-use facilities for conducting recreational activities such as aerobic exercises, weight lifting, running, swimming, racquetball, handball, and squash. This use shall also include instructional studios, such as dance studios and karate schools. A fitness center may also include the following customary accessory activities as long as they are intended for the use of the members of the center and not for the general public: babysitting, food service, and the service of alcoholic beverages for on premises consumption.
Food Service establishment: Any building, vehicle, place or structure, or any room or division in a building, vehicle, place or structure where food is prepared, served, or sold for immediate consumption on or in the vicinity of the premises; called for or taken out by customers; or prepared prior to being delivered to another location for consumption.
Food truck: A mobile food dispensing vehicle that is self-propelled and capable of being moved from place to place and where food and beverages are consumed off-premises.
Governmental Services: Buildings or facilities owned or operated by a government entity and providing services for the public. Typical uses include administrative offices for government agencies, public libraries, police stations, public utilities and public works facilities.
Instructional studio: A commercial establishment providing training or instruction for competition in martial arts, exercise, gymnastics, or related/similar activities.
Kennel (Commercial): A commercial establishment, including any building or land, used for the training, boarding or grooming of domesticated animals (e.g. dogs and cats) for profit and not necessarily owned by the occupants of the premises.
Landscape Service: An establishment engaged in the provision of landscape maintenance or installation services, such as lawn mowing, tree, shrub or hedge trimming, leaf blowing, landscape design, and landscape installation.
Laundry Services: An establishment that provides washing, drying, dry-cleaning, or ironing machines for hire to be used by customers on the premises, or that is engaged in providing laundry and dry cleaning services with customer drop-off and pick-up.
Machine or Welding Shop: A workshop where machines, machine parts, or other metal products are fabricated. Typical uses include machine shops, welding shops and sheet metal shops.
Manufacturing and Processing (Light): An establishment engaged in the manufacture, predominately from previously prepared materials, of finished products or parts, including processing, fabrication, assembly, treatment and packaging of such products, and incidental storage, sales and distribution of such products, but excluding heavy industrial processing. Typical uses include factories, large-scale production, wholesale distribution, publishing and food processing.
Medical and Dental Laboratory: A facility for the construction or repair of prosthetic devices or medical testing exclusively on the written order of a licensed member of the dental or medical profession and not for the general public.
Medical or Dental Office: An establishment where patients, who are not lodged overnight, are admitted for examination or treatment by persons practicing any form of healing or health-building services whether such persons be medical doctors, chiropractors, osteopaths, podiatrists, naturopaths, optometrists, dentists, or any such profession, the practice of which is lawful in the State of Florida. A pain management clinic shall not be considered a medical or dental office.
Medical Marijuana Treatment Center: A facility licensed by the Florida Department of Health to acquire, cultivate, possess, process (including but not limited to development of related products such as food, tinctures, aerosols, oils or ointments), transfer, transport, store, or administer marijuana, products containing marijuana, related supplies, or educational materials to qualifying patients or their caregivers, as authorized by state law. A facility which provides retail sales or dispensing of marijuana shall not be classified as a medical marijuana treatment center under this chapter, but shall be classified as a medical marijuana treatment center dispensing facility.
Medical Marijuana Treatment Center Dispensing Facility: A retail facility established by a licensed medical marijuana treatment center that sells or dispenses marijuana, products containing marijuana, or related supplies, but does not engage in any other activity related to the preparation, wholesale storage, distribution, transfer, cultivation, or processing of any form of marijuana, marijuana products, or related supplies.
Monument Sales, Retail: An establishment primarily engaged in the retail sale of monuments, such as headstones, footstones, markers, statues, obelisks, cornerstones, gargoyles and ledges, for placement on graves, including indoor or outdoor storage.
Nursery, Retail or Wholesale: An establishment offering the wholesale or retail sale of horticultural specialties such as flowers, shrubs, sod, trees, mulch and accessory hardscape materials, such as decorative stones, intended for ornamental or landscaping purposes.
Office, Business or Professional: An establishment providing executive, management, administrative, or professional services, but not involving medical or dental services or the sale of merchandise, except as an incidental uses. Typical uses include property and financial management firms, employment agencies (other than day labor), travel agencies, advertising agencies, secretarial and telephone services, contract post office; professional or consulting services in the fields of law, architecture, design, engineering, accounting and similar professions; and business offices of private companies, utility companies, public agencies, and trade associations.
Park, Passive: A public or private outdoor recreation area relying on a natural or man-made resource base and developed with a low intensity of impact on the land. Typical uses include trail systems, wildlife management and demonstration areas for historical, cultural, scientific, educational or other purposes that relate to the natural qualities of the area, and support facilities for such activities.
Parking Lot or Parking Garage, Commercial: A lot used for temporary parking or storage for motor vehicles as a principal use for a fee.
Place of Worship: A sanctuary which may include a retreat, convent, seminary or other similar use, owned or operated by a tax-exempt religious group that is used periodically, primarily or exclusively for religious worship, activities and related services.
Printing and Copying Services: An establishment engaged in retail photocopy, reproduction, or blueprinting services.
Repair and Maintenance, General: An establishment engaged in the repair and maintenance of motor vehicles or other heavy equipment or machinery, including automobiles, boats, motorcycles, personal watercraft and trucks, excluding paint and body work. Typical uses include vehicle repair garages, tune-up stations, glass shops, quick-lube, and muffler shops.
Repair Services, Limited: An establishment engaged in the repair of personal apparel or household appliances, furniture, and similar items, excluding repair of motor vehicles. Typical uses include apparel repair and alterations, small appliance repair, small motor repair (including golf carts, mopeds and lawn mowers), bicycle repair, clock and watch repair, and shoe repair shops.
Residential substance abuse treatment. An establishment that includes the following licensed providers or facilities as specifically listed in F.S. § 397.311(18), providing overnight services: (a) day or night treatment with community housing; (b) detoxification services; (c) medication-assisted treatment for opiate addition; (d) outpatient treatment and intensive outpatient treatment; (e) additions receiving facility; (f) intensive inpatient treatment facility; and (g) residential treatment facility. Residential substance abuse treatment providers may also provide outpatient substance abuse treatment services.
Restaurant, fast food: An establishment equipped to sell food and beverages by one of (1) the following methods: drive-through sales to patrons in automobiles for take-out who place orders through a window or remote transmission device; or sales to patrons for take-out or dining in, that includes three (3) or more of the following: food or beverage choices are advertised on a menu board; countertop sales where payment is made prior to consumption; disposable containers and utensil; limited service dining facilities with no hostess or waiters; and self-service or prepackaged condiments.
Restaurant, take out: An establishment where food and beverages are served to be consumed off-premises.
Security or Caretaker Quarters: An accessory residence used by a caretaker or security guard actively engaged in providing security, custodial or managerial services upon the premises.
Self-Service Storage, Limited Access: A facility consisting of individual, self-contained units that are leased for the storage of business or personal goods.
Transportation Facility: A facility for loading, unloading, and interchange of passengers, baggage, and freight or package express between modes of transportation. Typical uses include bus terminals, railroad stations and yards, and major mail-processing centers.
Transportation Transfer Facility (Distribution): An establishment providing for the transfer of transportation or other motorized vehicles, but not involving vehicle sales or rental (retail or wholesale). Typical uses include the transfer of automobiles, trucks, heavy equipment, or other motorized vehicles prior to distribution to retail dealers.
Shade House: A temporary screen enclosure used to protect plants from insects, heat and exposure to the sun.
Towing Service, No Storage: An establishment engaged in tow truck and towing services, including dispatching, with no outdoor storage of vehicles, sales or repairing or salvage activity.
Veterinary Clinic: An establishment engaged in providing medical care, treatment and temporary boarding for animals.
Vocational School: An establishment offering regularly scheduled instruction in technical, commercial, or trade skills such as business, real estate, building and construction trades, electronics, computer programming and technology, automotive or aircraft mechanics and technology, or other type of vocational instruction.
Warehouse: A building used for the storage of raw materials, equipment, or products. Typical uses include moving companies, cold storage, and dead storage facilities, but exclude self-service storage facilities.
Wholesaling, General: An establishment engaged in the display, maintaining inventories of goods, storage, distribution and sale of goods to other firms for resale or supplying goods to various trades, such as landscapers, construction contractors, institutions, industries, or professional businesses. In addition to selling, wholesale establishments sort and grade goods in large lots, break bulk and redistribute in smaller lots, delivery and refrigeration storage, but excluding vehicle sales, wholesale greenhouses or nurseries, wholesale of gas and fuel, and wholesale building supplies.
C.
Uses permitted. Within any I-1 light industrial district, a building, structure, land or water shall not be used except for one (1) or more of the following uses:
Key:
P — Permitted by right.
SE — Permitted subject to special exception approval per Section 45-16.2.
D.
Supplemental use regulations for select permitted or special exception uses. Permitted or special exception uses in the I-1 district shall be subject to the following conditions.
1.
Assisted living facility: The following shall apply:
a.
Assisted living facilities shall be approved as a planned unit development.
b.
Each residential living area containing one (1) bed shall have a minimum floor area of one hundred fifty (150) square feet. An additional one hundred (100) square feet of floor area shall be required for each additional bed provided within the same residential living area.
c.
The maximum number of beds allowed in an assisted living facility shall be determined by multiplying the gross acreage of the site by forty-seven and twenty-eight-hundredths (47.28) beds per acre.
2.
Auto paint and body shop: All activity, except detailing and car washing shall be conducted within an enclosed structure. Use of outdoor lifts, jacks, paint booths and similar equipment is prohibited.
3.
Building supplies: Limited retail sales of lumber and similar products to consumers may be conducted only as an accessory use to the primary wholesale use.
4.
Butcher shop: The following shall apply:
a.
Storage and disposal: Outdoor storage or disposal of waste or byproducts is not permitted.
b.
Slaughtering: Slaughtering, rendering and dressing shall be prohibited.
5.
Catering Service: The use shall be subject to the following:
a.
Catering shall be allowed as an accessory use to a restaurant.
b.
The use of more than three (3) delivery vehicles shall require special exception approval.
6.
Car wash: A car wash shall be allowed to utilize one (1) canopy which may be located in the rear yard with a minimum five-foot setback, provided that it is not adjacent to a residential use.
7.
Chipping and mulching:
a.
Lot size: A minimum of five (5) acres.
b.
Setback: A minimum of five hundred (500) feet from any property line abutting a residential district.
c.
Accessory uses: Potting soil manufacturing may be allowed as an accessory use to chipping and mulching.
d.
Access: Access shall be restricted to specific entrances with gates that can be locked and that carry official notice that only authorized persons are allowed on the site.
8.
Communications panel antennas: Communications panel antennas may be allowed subject to Section 45-21.
9.
Community vegetable garden:
a.
Accessory structures: Accessory structures shall be limited to 400 square feet.
b.
Spraying: Aerial application of fertilizer or pesticides is prohibited.
c.
Parking: Overnight parking shall be prohibited.
d.
Loading: All loading and unloading activities shall be restricted to the site and shall not encroach into any setbacks.
e.
Storage: Outdoor storage is prohibited. The storage of all accessory equipment or products shall be contained within an accessory structure.
10.
Daycare center: The use shall be subject to the following:
a.
Day care does not include nighttime care (after 8:00 p.m.) or overnight care.
b.
Limited day care (6—20 children or adults) may be permitted as an accessory use to a place of worship, vocational school or government services use.
11.
Dispatching office: A dispatching office shall be limited to no more than three (3) service or delivery vehicles unless specifically approved by the Village Council as part of a Planned Unit Development.
12.
Dog daycare:
a.
Waste disposal: A dog daycare shall comply with each of the following standards:
(1)
Palm Beach County Environmental Control Rule (ECR) 1 and ECR 2;
(2)
All applicable rules and regulations of the Florida Department of Environmental Protection (FDEP);
(3)
All applicable rules and regulations of the Palm Beach County Health Department;
(4)
All applicable rules and regulations of the Palm Beach County Solid Waste Authority.
b.
Number of dogs: The number of dogs permitted shall be based upon the square footage of the facility pursuant to Palm Beach County Animal Control Center limitations and requirements.
c.
Vehicle drop-off spaces: Vehicle drop-off spaces shall be provided and are subject to the following standards:
(1)
At least three (3) drop-off spaces shall be provided for each fifty (50) dogs of approved capacity; and
(2)
Drop-off spaces shall measure not less than twelve (12) feet by twenty (20) feet.
d.
Outdoor runs/dog exercise areas: If used, outdoor runs or dog exercise areas shall be located a minimum of three hundred (300) feet from a residential use or zoning district or shall be fenced utilizing a sound-absorbing material on any side which is adjacent to or separated only be street from any residential use or zoning district to contain the sound as required by chapter 19, article VI of this Code. Such outdoor runs or dog exercise areas shall be hard surfaced or grassed and if hard surfaced, shall have drains provided every ten (10) feet and be connected to a central or individual sanitary facility approved by Seacoast Utility Authority or the Palm Beach County Health Department. Grassed outdoor runs and dog exercise areas shall be maintained by removing dog waste daily. A minimum six-foot high fence shall be required around outdoor runs and dog exercise areas. In addition, where chain-link fencing is used, a continuous solid opaque hedge a minimum of four (4) feet at installation shall be provided around the outdoor run area or dog exercise area. Animals shall not be left overnight in outdoor runs or dog exercise areas.
13.
Film production studio:
a.
Outdoor activities: Outdoor activities, including filming or staging of a film, are prohibited unless specifically authorized by the Village Council.
b.
Film permit: Prior to commencement of any regulated activity related to the production of a film within the Village, a film permit shall be issued by the Director of the Palm Beach County Film and Television Commission. The duration of the permit shall not exceed twenty-four (24) months without approval of the Community Development Director.
14.
Food trucks:
a.
Food trucks shall only be permitted as an accessory use to a primary, approved use.
b.
Food trucks selling items other than packaged or pre-packaged food items shall be licensed as mobile food dispensing vehicles by the Florida Department of Business and Professional Regulation, Division of Hotels and Restaurants and shall comply with all rules and regulations promulgated by the Division, including, but not limited to, those pertaining to potable water and waste disposal. Food trucks selling packaged and pre-packaged food items only shall be licensed by the Florida Department of Agriculture and Consumer Services.
15.
Kennel, commercial:
a.
Limitations of use: A commercial kennel shall be limited to the training, boarding and grooming of dogs and cats.
b.
Outdoor runs: Outdoor runs shall comply with the requirements of subsection D.12.d.
16.
Manufacturing, assembly or processing: All activities involving the manufacturing, assembly or processing of goods shall be within completely enclosed buildings with permanent outside walls.
17.
Parking lot or parking garage, commercial:
a.
Principal use: Parking spaces may be rented for daily parking only. Any other businesses of any kind shall not be conducted on the lot, including repair service, display, or storage of other goods, except mobile emergency services and detailing.
b.
Location: A commercial parking lot shall not be located on a parcel adjacent to residential land uses.
c.
Storage: Storage of vehicles and trailers shall be permitted if screened from public view by a permanent opaque wall or fence.
18.
Residential substance abuse treatment.
a.
No residential substance abuse treatment establishment may be located within one thousand (1,000) feet of any other residential substance abuse treatment establishment. The separation distance shall be measured from the closest property line of each residential substance abuse treatment center establishment.
b.
The maximum number of beds allowed in a residential substance abuse treatment facility shall be determined by multiplying the gross acreage of the site by forty-seven and twenty-eight-hundredths (47.28) beds per acre.
19.
Restaurant, fast food:
a.
Fast-food restaurants shall be located at the intersection of two (2) public access roads.
b.
Drive through facilities, including queuing and by-pass lanes that run parallel and are visible from adjacent streets, shall provide additional landscaping to mitigate views of the vehicular use areas.
c.
Required parking spaces shall not be separated from the restaurant main entrance by a distance of more than one hundred fifty (150) feet.
d.
Cross-access shall be provided to all abutting parcels that have a non-residential zoning classification. A cross-access easement shall be recorded prior to issuance of a building permit.
20.
Security or caretaker dwelling:
a.
Number: One (1) security or caretaker dwelling shall be permitted as an accessory use on the same lot as a principal use permitted per subsection C.
b.
Occupancy: A security or caretaker quarters shall be for the exclusive use of the site on which it is located and shall be occupied only by the custodian, caretaker, or owner of the principal use and his or her immediate family.
c.
Maximum size: The maximum size of a security or caretaker dwelling shall be not more than eight hundred (800) square feet.
21.
Self-service storage, limited access:
a.
Exterior service doors: All exterior service doors must not be visible from any public street or adjacent property.
b.
Maximum height: Buildings shall be a maximum of two (2) stories in height.
c.
Blank walls: No blank walls shall be permitted facing the front yard.
d.
Minimum separation: A minimum of one thousand (1,000) feet separation shall be required between limited access storage facilities. The separation distance shall be measured from the closest property line of each self-service storage facility.
22.
Veterinary clinic: Outdoor runs shall comply with the requirements of subsection D.12.d.
23.
Warehouse:
a.
Accessory office: The maximum amount of office space in each warehouse bay shall not exceed thirty (30) percent of the gross floor area of the associated bay.
b.
Sales: General retail sales are prohibited.
c.
Manufacturing: Manufacturing, assembly or processing activities are prohibited in a warehouse.
24.
Medical marijuana treatment centers:
a.
Location requirements: Medical marijuana treatment center cultivating or processing facilities may not be located within five hundred (500) feet of any real property that comprises a public or private elementary school, middle school, or secondary school. The distance shall be measured by drawing a straight line from the nearest property boundary line of the medical marijuana treatment center to the nearest property boundary line of the public or private elementary school, middle school, or secondary school. The distance shall not be measured by a pedestrian route or automobile route.
b.
Compliance with laws: Medical marijuana treatment centers shall, at all times, comply with the licensing and regulatory requirements of section 381.986, Florida Statutes, as amended, and all other applicable statutes and state administrative rules, including the Florida Building Code, the Florida Fire Prevention Code, and any local amendments thereto.
c.
License or permit fees: Medical marijuana treatment centers shall be charged all license or permit fees in an amount equal to the license or permit fees charged to pharmacies. Any person or entity applying for or renewing a business tax receipt for a medical marijuana treatment center within the village shall exhibit an active state license, or proof of same, before such business tax receipt may be issued.
E.
Deliveries adjacent to residential land uses. Any establishment that receives deliveries and is located adjacent to residential land uses shall be subject to the following restrictions:
1.
Deliveries shall be limited to the hours of 6:00 a.m. to 5:00 p.m. only, Monday through Saturday, and are prohibited on Sunday.
2.
Delivery truck engines, including refrigeration units, shall not be operated between the hours of 5:00 p.m. and 6:00 a.m.
F.
Wellfield protection. All permitted and accessory uses within the I-1 light industrial district shall be subject to the provisions of Article 14.B Wellfield Protection of the Palm Beach County Unified Land Development Code, as amended.
G.
Building site area regulations. In the I-1 district, each lot or parcel of land shall comply with the following standards:
1.
Minimum site area: One (1) acre.
2.
Minimum lot width: One hundred (100) feet.
3.
Minimum Lot Depth: Two hundred (200) feet.
4.
Minimum front setback: Forty (40) feet.
5.
Minimum Rear Setback: Twenty (20) feet.
6.
Side Interior Setback: Fifteen (15) feet.
7.
Side Corner Setback: Twenty-five (25) feet.
8.
Building height: Thirty-five (35) feet.
9.
Maximum lot coverage: Forty-five (45) percent.
10.
Maximum floor-area-ratio: Forty-five-hundredths (0.45).
H.
Property perimeter requirements. The following general requirements for the treatment of property perimeters shall apply to the I-1 light industrial district:
1.
Abutting I-1 properties. When two (2) parcels within an I-1 light industrial zoning district abut side and/or rear setbacks, the required landscape material in the abutting side or rear setback of the perimeter buffer may be relocated to the interior landscape area or other perimeter buffers of the subject property. The relocation of the required landscape material must be approved by the Planning Commission.
2.
Waiver of perimeter requirements. Property perimeter requirements for properties in the I-1 District may be reduced or waived by the Village Council, on a case by case basis during the Planned Unit Development (PUD) approval process. The reduction or deletion of the landscape design standards shall be permitted only when such action shall further the purpose and intent of the I-1 District and where one (1) or more of the following circumstances exists:
a.
Proximity to railroad tracks;
b.
Non-conforming lot status;
c.
Proximity to public land containing a significant buffer;
d.
Proximity to a public right-of-way containing an extensive landscape buffer or screening wall.
I.
Landscape buffer standards for Congress Avenue. Each I-1 District parcel of land adjacent to the ultimate right-of-way of Congress Avenue shall provide a landscape buffer running parallel with the right-of-way. The landscape buffer shall comply with the following standards:
1.
Minimum width. The landscape buffer shall have a minimum width of twenty-five (25) feet, as measured from the ultimate right-of-way line, as determined by Palm Beach County.
2.
Restrictions. Buildings or structures shall not be erected or reconstructed within this buffer, except for permitted signs, lighting or required public utilities.
3.
Required planting palette for installed vegetation. As a minimum, eighty (80) percent of the total installed and/or preserved landscape material shall be selected from native plant species consistent with the requirements of Section 27-62(a).
4.
Tree and shrub planting requirements.
a.
Required tree heights. At the time of installation all tree material shall be of heights varying from six (6) feet to fifteen (15) overall feet or higher. The minimum following height requirements shall apply:
b.
Minimum number of trees. The minimum number of trees and shrubs required in the buffer is as follows:
*
Pedestrian and vehicular access points may be excluded from the above linear buffer requirements when the access points are approved by the Village.
c.
Shrub planting requirements. Shrub planting requirements. At time of installation all shrub material shall be thirty-six (36) inches in height with a minimum container size of three (3) gallons for all nursery materials. Tree spade and transplanted material from on-site shall be a minimum thirty-six (36) inches in height at time of planting.
5.
Preserved plant materials. Existing on-site native vegetation shall be preserved where possible within the required buffer widths. Existing native trees and shrubs that are preserved or relocated within the buffer areas will be credited towards satisfying the minimum required installation of landscaping.
6.
Lakes. Lakes may be provided within the required buffer areas provided the minimum buffer width specified is provided. Buffer area plant materials displaced by a lake shall be included within other required buffer areas.
J.
Off-street parking and loading regulations.
1.
Prohibitions:
a.
The storage or display of merchandise, motor vehicles for sale, or the repair of vehicles in designated parking areas or on sidewalks is prohibited.
b.
Parking shall not be permitted in the first ten (10) feet of the required front yard depth, measured from the street right-of-way line.
2.
Parking spaces required. For each of the uses permitted in subsection C., the Community Development Director or his or her designee shall determine, prior to the submittal of a site plan application, which of the following general categories of parking spaces requirements shall apply to a specific development concept:
3.
Off-street loading. The following provisions shall regulate off-street loading facilities in the I-1 District for those permitted uses requiring such facilities. A determination of the need for off-street loading spaces shall be made by the Planning Commission based upon an applicant's statement of use describing the nature of the proposed establishment to be submitted with a site plan approval application.
a.
Required number and size of off-street loading facilities. Each use determined to require off-street loading spaces shall comply with the requirements indicated below:
b.
Location. Loading spaces shall be located such that vehicles engaged in loading and unloading activities will not encroach upon, or interfere with, the public use of streets or alleys.
c.
Marking and use of loading spaces. Required loading spaces shall be clearly marked, and shall not be utilized as storage for garbage or trash containers or any other items.
d.
Minimum clear height. All loading spaces shall have a minimum clear height of thirteen and one-half (13½) feet.
4.
Vehicle use area requirements.
a.
In keeping with the purpose and intent of this chapter, the following general requirements for vehicle use areas shall apply to the I-1 District:
b.
Vehicle use area requirements may be reduced or waived by the Village Council through the Planned Unit Development (PUD) process, on a case by case basis. The reduction or deletion of the landscape design standards shall be permitted only when such action shall further the purpose and intent of the I-1 District and where one (1) or more of the following circumstances exists:
(1)
Proximity to railroad tracks;
(2)
Non-conforming lot status;
(3)
Proximity to public land containing a significant buffer;
(4)
Proximity to a public right-of-way containing an extensive landscape buffer or screening wall.
K.
Artificial lighting. Artificial lighting used to illuminate the premises in the I-1 District shall be directed away from adjacent residential properties.
L.
Access. Prior to issuance of a building permit, the I-1 District parcel shall have access to either a dedicated public road or street, or to a private road or street developed to Village standards.
M.
Fences, walls and hedges. Fences and walls enclosing any permitted use shall comply with the following regarding site visibility:
1.
Within the area formed by the rights-of-way lines of intersecting streets, a straight line connecting points on such rights-of-way lines at a distance of twenty-five (25) feet in length along such rights-of-way lines, such connecting lines extending beyond the points to the edge of the pavement, there shall be a clear space with no obstruction to vision. Fences, walls, hedges and vision obstructing plantings shall be restricted to a height of two and one-half (2½) feet or less above the average grade of each street as measured at the centerlines thereof.
2.
No fence, wall or hedge in the I-1 light industrial district shall exceed a height of eight (8) feet.
N.
Outdoor storage. Outdoor storage and display may be permitted in the I-1 District where such use is customarily incidental to the principal use. Such outdoor display and sale of merchandise shall be limited to the operation of the principal business located at the premises in question and conducted by employees of said principal business. There shall be no outdoor display and sale of merchandise by any person operating or conducting a business which is different or distinct from the principal business conducted at such location.
a.
Outdoor storage may be permitted adjacent to a structure provided it is located in an area other than a parking area or yard setback area and screened from a street or abutting residentially zoned property by a masonry wall, ornamental fence or dense hedge planting no less than six (6) inches higher than the materials stored. Screening density must be such that items within the screened area will not be visible through such screening. When the outside storage is abutting a residential district, the height of the stored materials shall not exceed seven and one-half (7½) feet from the grade level.
b.
Side and rear yard screening will not be required when the abutting property is also within the I-1 District.
c.
Loose materials such as sand, lumber, cardboard boxes and the like, which are subject to being scattered or blown about the premises by normal weather conditions shall not be allowed. Mulch, soil, and aggregate products which are ancillary to a nursery may be stored outside provided that a materials management program is approved by the Village.
O.
Screening. All mechanical, electrical, water meters, exhaust vents, etc., located at ground or roof-mounted shall be entirely screened from public view utilizing opaque materials (i.e., wood fencing, brick, block, etc.) as screening. Landscaping material shall be incorporated in addition to opaque screening on equipment located at ground level. Screening material shall accommodate maintenance or inspection thereof with the use of appropriate panels, and/or hinged gates.
P.
Signs. All signs, permanent and temporary, shall be located a minimum of ten (10) feet from the ultimate rights-of-way line of the adjacent street or road, as defined by the Village or Palm Beach County, as appropriate.
1.
Permit required. All signs shall require the issuance of a building permit prior to erection and in accordance with the procedures established by the Village for the issuance of building permits.
2.
All building permit applications for signage in the I-1 District shall comply with Article V, Signs and Outdoor Displays of the Village Code.
3.
Where distinctions among uses are made in Article V, uses in the I-1 District shall be considered to be commercial uses.
Q.
Northlake Boulevard Overlay Zone. Any property located within the Northlake Boulevard Overlay Zone and assigned an I-1 light industrial zoning designation shall comply with Section 45-35.3.
(Ord. No. 2015-11, § 4, 6-25-15; Ord. No. 2017-21, § 3, 12-14-17; Ord. No. 2020-06, § 25, 9-24-20)
Medical marijuana treatment center dispensing facilities shall be prohibited within the corporate limits of the village.
(Ord. No. 2017-21, § 3, 12-14-17)
(a)
Applicability. The regulations set forth in this section shall apply to any building or structure utilized as a vacation rental within any village zoning district. A vacation rental is a dwelling unit that is also a transient public lodging establishment, but is not a time share project. A transient public lodging establishment, as defined by F.S. § 509.013(4)(a), as amended, is any unit which is rented out to guests more than three (3) times in a calendar year for periods of less than thirty (30) days or one (1) calendar month, whichever is less, or which is advertised or held out the public as a place regularly rented to guests for periods less than thirty (30) days or one (1) calendar month, whichever is less.
(b)
Registration and inspection.
(1)
Registration required. It shall be unlawful for any person or entity to operate a vacation rental within the corporate limits of the village without first registering the vacation rental with the community development department in accordance with the requirements of this division. All existing vacation rentals shall be required to be registered by October 1, 2021.
(2)
Initial registration. Every vacation rental owner or operator shall first register with the village by submitting to the community development department a properly completed and notarized registration form, as prescribed by the village, together with a registration fee in an amount established by resolution of the village council. A separate registration form shall be required for each vacation rental. The registration form shall be accompanied by the following:
a.
A copy of the business tax receipt issued by the village;
b.
A copy of the Florida Department of Business and Professional Regulation license as a transient public lodging establishment/vacation rental;
c.
A copy of the vacation rental's current and active certificate of registration with the Florida Department of Revenue for the purpose of collecting and remitting sales taxes, transient rental taxes and any other taxes required by law to be remitted, as applicable, or proof that payment is arranged through a third party such as an on-line platform;
d.
Proof of the establishment of an account with the Palm Beach County Tax Collector for the payment of tourist development taxes or that payment is arranged through a third party such as an on-line platform;
e.
Copies of the postings required by subsection (c)(5) below;
f.
A copy of a sample lease agreement; and
g.
A completed vacation rental responsible party designation, in the format prescribed by the village, which includes the information required by subsection (c)(4) below.
(3)
Registration renewal. After a vacation rental is initially registered, the registration shall be renewed by October 1 st of each year through the execution of a renewal affidavit, in the format prescribed by the village, and the payment of the renewal fee established by resolution of the village council.
(4)
Registration updates. Any changes to the information or submittals included with the initial registration must be reported to the village within thirty (30) days of the occurrence of such changes.
(5)
Incomplete registration/renewal. If the registration form or renewal form submitted pursuant to this section is incomplete, the registrant shall be informed of such deficiency and shall have ten (10) days to correct the deficiency.
(6)
Outstanding code violations. The village shall not process any vacation rental registration or renewal if the property has unresolved code violations or code enforcement liens.
(7)
Inspection. Inspection by the village to verify compliance with the requirements of the division may be required subsequent to initial registration with the village and annually after each renewal. Non-compliance with the requirements of this division discovered during any inspection shall be treated as a violation of the Village Code and be processed in accordance with subsection (d) below. Failure to allow the Village to inspect the vacation rental within twenty (20) days after the village notifies the owner or responsible party that the village is ready to conduct an inspection shall constitute a separate violation of the Village Code and be processed in accordance subsection (d) below.
(8)
Evidence of vacation rental operation. Advertising, listing or posting a property on the internet, utilizing any mass communication medium or in any publication as being available for use as a vacation rental creates a rebuttable presumption that the owner or operator is utilizing the property as a vacation rental. Nothing set forth herein precludes the village from presenting other forms of evidence of vacation rental operation.
(9)
False information. It shall be unlawful for any person to give any false or misleading information in connection with the requirements and obligations set forth in this section.
(c)
Vacation rental standards. No person or entity shall operate a vacation rental within the village unless such vacation rental complies with the following standards:
(1)
Minimum life/safety requirements:
a.
Swimming pool, spa and hot tub safety. A swimming pool, spa or hot tub shall comply with the current standards of the Residential Swimming Pool Safety Act, as set forth in F.S. ch. 515.
b.
Smoke and carbon monoxide (CO) detection and notification system. If an interconnected and hard-wired smoke and carbon monoxide (CO) detection and notification system is not in place within the vacation rental, then one (1) such system shall be required to be installed and maintained on a continuing basis consistent with the requirements of Section R314, Smoke Alarms, and Section R315, Carbon Monoxide Alarms, of the Florida Building Code-Residential.
c.
Fire extinguisher. A portable, multi-purpose dry chemical 2A:10B:C fire extinguisher shall be installed, inspected and maintained in accordance with NFPA 10 on each floor/level of the dwelling unit. The extinguisher(s) shall be installed on the wall in an open common area or in an enclosed space with appropriate markings visibly showing the location.
d.
Battery powered emergency lighting of primary exit. Battery powered emergency lighting which provides illumination automatically in the event of any interruption of normal lighting shall be provided for a period of not less than one (1) hour to illuminate the primary exit.
e.
Emergency egress and maintenance. Halls, entrances and stairways within a vacation rental shall be clean and ventilated. Hall and stair runners shall be kept in good condition. Rails shall be installed on all stairways and around all porches and steps.
(2)
Maximum occupancy. Each vacation rental dwelling unit shall comply with the occupancy limitations set forth in the Property Maintenance Code referenced in section 15-27 of this Code, provided, however, that in no event shall maximum occupancy of such dwelling unit exceed two (2) persons per bedroom plus two (2) additional persons.
(3)
Lease requirements. There shall be a written or online lease, rental, tenant or other recorded agreement memorializing each vacation rental tenancy between the owner or responsible party and the occupant(s). The agreement shall, at a minimum, contain the following information:
a.
The maximum number of occupants for the unit as specified in subsection (2) above;
b.
The number of parking spaces associated with the vacation rental unit, if applicable, and the location of such spaces;
c.
The names and ages of all persons who will be occupying the unit;
d.
The dates of such occupancy; and
e.
A statement that all occupants must evacuate from the vacation rental following any evacuation order issued by local, state or federal authorities.
The village reserves the right to request and receive a copy of any vacation rental lease or rental agreement from the owner or responsible party at any time.
(4)
Parking. All occupants of and visitors to a vacation rental must abide by all applicable parking regulations and park only in designated and/or approved areas.
a.
If the vacation rental is a single-family home or duplex, occupants and visitors may only park vehicles on driveways, in garages or carports, on approved, stabilized parking areas (consisting of space that is covered and graded by semi-permeable or impervious materials such as asphalt, concrete, pavers, gravel or similar material), or on the street or swale area immediately adjacent to the vacation rental property. Occupants and visitors may not park on the street or swale area that abuts an adjacent dwelling.
b.
The number of automobiles that may be parked at a vacation rental outside of a carport or garage shall be limited to one (1) automobile per bedroom, plus one (1), not to exceed a total of five (5) automobiles.
(5)
Vacation rental responsible party. Each vacation rental must designate a responsible party to respond to routine inspections as well as non-routine complaints and any other problems related to the operation of the vacation rental. The property owner may serve in this capacity or shall otherwise designate another person eighteen (18) years or older to perform the following duties:
a.
Be available by telephone at the listed phone number twenty-four (24) hours per day, seven (7) days per week and be capable of handling any issues relating to the operation of the vacation rental;
b.
If required, be willing and able to come to the vacation rental within two (2) hours following notification from an occupant, the owner, or the village to address any issues relating to the operation of the vacation rental;
c.
Maintain a record of all lease or rental agreements for the vacation rental;
d.
Receive service of any legal notice on behalf of the owners for violation of the requirements set forth in this division; and
e.
Otherwise monitor the vacation rental to ensure compliance with the requirements set forth in this division.
(6)
Minimum vacation rental information required postings. The vacation rental shall be posted with the following information, either on the back of or next to the main entrance door or on the refrigerator:
a.
The name, address and telephone number of the vacation rental responsible party;
b.
A notification that all garbage or trash must be placed in a garbage or trash can or other approved garbage receptacle and that all recyclables must be placed in approved recyclable containers;
c.
The location of the nearest hospital;
d.
The location of designated parking spaces/areas, if applicable; and
e.
For units located within multi-family buildings more than two (2) stories in height, a building evacuation map (at least eight and one-half (8½) inches by eleven (11) inches) shall be posted on or next to the interior portion of the front door.
(7)
Other regulations. Vacation rentals must comply with all other regulations, standards and requirements set forth in the Village Code of Ordinances, including, but not limited to, the requirements of chapter 4 (Animals and Fowl), chapter 6 (Buildings and Building Regulations), chapter 14 (Health and Sanitation), chapter 15 (Housing), chapter 18 (Motor Vehicles and Traffic), chapter 19 (Offenses and Miscellaneous Provisions) and Appendix C (chapter 45) (Zoning).
(d)
Violations; remedies; enforcement.
(1)
Violations. Non-compliance with any provision of this division shall constitute a violation of the Village Code of Ordinances and each day the violation exists shall constitute a separate and distinct violation.
(2)
Remedies and enforcement. Any violations of this division may be enforced pursuant to section 1-8 of the Village Code of Ordinances, through the code enforcement process set forth in chapter 2, article VI of the Village Code of Ordinances, or through any other manner authorized by law, including, but not limited to, injunctive relief.
(3)
No waiver. A valid vacation rental registration shall not be construed as a waiver of any of the requirements contained within the Village Code of Ordinances or the Village's Comprehensive Development Plan nor shall such registration be construed as approval of a use or activity that would otherwise be illegal under Florida law or prohibited by the Florida Building Code or the Florida Fire Prevention and Life Safety Code.
(Ord. No. 2021-14, § 2, 9-8-21)
DISTRICT REGULATIONS[2]
Cross reference— Home occupations, § 17-2.
A.
Uses permitted. Within any R-1 single-family dwelling district no building, structure, land or water shall be used except for one (1) or more of the following uses:
1.
Single-family dwellings with accessory buildings customarily incident thereto, subject to each of the requirements set forth in this section and throughout this chapter.
2.
Public schools.
3.
Parks and recreation facilities owned or leased by or operated under the supervision of the Village of North Palm Beach.
4.
Detached fence storage areas.
5.
Satellite dish antenna.
6.
Community residential homes. Community residential homes of six (6) or fewer residents which otherwise meet the definition of a community residential home, provided that such homes shall not be located within a radius of one thousand (1,000) feet of another existing such home with six (6) or fewer residents.
7.
Family day care home.
8.
Lamp post.
9.
Decorative post structure.
B.
Building height regulations. All single-family dwellings shall be limited to two (2) stories and thirty feet (30') in height. For the purposes of this subsection, height shall be measured from the average elevation of the existing grade prior to land alteration for properties outside of special flood hazard areas and from the required design flood elevation for properties within special flood hazard areas. Height shall be measured to the highest point of the following:
1.
The coping of a flat roof and the deck lines on a mansard roof;
2.
The average height level between the eaves and roof ridges or peak for gable, hip or gambrel roofs; or
3.
The average height between high and low points for a shed roof.
Decorative architectural elements, chimneys, mechanical equipment, non-habitable cupolas, elevator shafts or similar appurtenances shall be excluded from the foregoing height restrictions. Rooftops shall not be used for pools, decks, or other spaces to congregate.
C.
Building site area regulations. The minimum lot or building site area for each single-family dwelling shall be seven thousand five hundred (7,500) square feet and have a width of not less than seventy-five (75) feet, measured at the building line.
D.
Yard space regulations.
1.
Front yard. There shall be a front yard of not less than twenty-five (25) feet for the first story and thirty (30) feet for the second story measured from the street line to the front building line.
2.
Rear yard. There shall be a rear yard of not less than twenty (20) feet for the first story and twenty-five (25) feet for the second story measured from the rear building line to the rear lot line.
3.
Side yards. There shall be a side yard on each side of the side building line of not less than ten (10) feet for the first story and fifteen (15) feet for the second story. In the case of corner lots, no building and no addition to any building shall be erected or placed nearer than twenty (20) feet to the side street line of any such lot.
(a)
For a distance of one block on streets intersecting U.S. #1, measured from the right-of-way line of said U.S. #1, side yards of at least twenty-five (25) feet in depth shall be provided.
4.
Applicability of second story setback. The second story setback shall apply only to the roofed portion of the second story of a two-story, single-family dwelling and shall not apply to non-roofed second story patios or balconies.
E.
Wall treatment. All exterior walls shall contain articulation creating visual interest utilizing at least four (4) features in accordance with the following:
1.
At least two (2) different features listed below must be included; however, windows may be used for all four (4) features so long as each window meets the requirements of subsection E.4.:
(a)
Projecting cornice.
(b)
Projecting metal canopy.
(c)
Opaque, translucent, or transparent glass windows.
(d)
Vertical articulation.
(e)
Recesses.
2.
The following features listed below may also be included and count toward the required four (4) features:
(a)
Masonry (but not flat concrete block).
(b)
Concrete or masonry plinth at wall base.
(c)
Belt courses of a different texture and color.
(d)
Decorative tile work.
(e)
Medallions.
(f)
Lighting fixtures.
3.
One of the above features may be replaced by an architectural element or feature not listed above, as approved by the village, that meets the intent of this section.
4.
Each wall treatment feature must be no less than nine (9) square feet.
5.
If the single-family dwelling is more than one story, at least thirty-five (35) percent of the wall treatment features must be located above the first story.
(Figure Deleted)
F.
Second-story floor area. The floor area of the second story of a single-family dwelling shall not exceed seventy-five (75) percent of the floor area of the first story. For the purposes of this subsection, floor area shall include all areas lying within the building perimeter established by the interior side of the exterior walls of the building, including garages, covered patios, and other open-air exterior areas that are under roof. The floor area for the second story shall include areas open to below.
G.
Off street parking regulations. At least one parking space measuring at least nine (9) feet by eighteen (18) feet (one hundred sixty-two (162) square feet) shall be provided. All parking spaces shall consist of a durable surfaced area as approved by the community development director, and may be enclosed in the dwelling, in an accessory building or in an unenclosed area or a driveway. All vehicles parking on a lot must be parked on a durable surface.
H.
Accessory structures. One detached automobile garage and one open-air pavilion may be constructed on any lot within the R-1 single-family dwelling district provided that all requirements of this chapter are met. Open air pavilions shall be subject to the following additional conditions and restrictions:
1.
Permitting.
(a)
All open-air pavilions must be permitted in accordance with all Florida Building Code and Village Code requirements.
(b)
Open-air pavilions meeting the definition of a traditional chickee hut are exempt from the Florida Building Code but shall be subject to consistency review by the village. Consistency shall be demonstrated through the issuance of a zoning permit and shall require the submittal of the following information:
(1)
A survey that includes scaled dimensions of the proposed structure, including setbacks;
(2)
Proof that the builder of the chickee hut is a member of either the Miccosukee Tribe of Indians of Florida or the Seminole Tribe of Florida (such proof consisting of a copy of the trial member's identification card); and
(3)
Drawings of the proposed structure depicting, at a minimum, the overall design, dimensions, roof materials, and height.
2.
Dimensions. Open-air pavilions shall not exceed two hundred (200) square feet in floor area. The floor area shall be measured from outside the support posts, provided that the roof overhang does not exceed three (3) feet from the support posts. If the roof overhang exceeds three (3) feet, the floor area shall consist of the entire roofed area. For structures supported by a single-pole, i.e., umbrella shape, the floor area shall be measured from the drip line of the roof material.
3.
Height. Open-air pavilions shall not exceed twelve (12) feet in height or the height of the principal building located on the lot, whichever is more restrictive. For sloped roofs, the height shall be measured at the mean roof height.
4.
Location and Setbacks.
(a)
No open-air pavilion may be erected within ten (10) feet of the side property line. This side setback shall be increased to twenty (20) feet for corner lots.
(b)
No open-air pavilion may be erected within seven and one-half (7½) feet of the rear property line.
(c)
No open-air pavilion or any portion thereof may be erected between the front line of the principal building and the front property lot line, within a utility or drainage easement, or within a required landscape buffer.
5.
Use restrictions.
(a)
An open-air pavilion shall be used only for private recreational activities as an accessory use to the principal residential use and shall not be used for habitation, for a tool room, storage room or workshop, or for any commercial purpose whatsoever.
(b)
Open-air pavilions shall not be used for storage of items of personal property, including, but not limited to, the following:
(1)
Operable or inoperable vehicles, boats, boat trailers, utility trailers or similar items of personal property;
(2)
Building materials, lawn equipment, tools or similar items; and
(3)
Ice boxes, refrigerators and other types of food storage facilities with the exception of under-counter units.
(c)
No gas, charcoal or propane grills, stoves or other types of cooking devices may be stored or utilized within a traditional chickee hut.
6.
Maintenance. Open-air pavilions shall be maintained in good repair and in sound structural condition. Painted or stained surfaces shall be free of peeling paint, mold and mildew and void of any evidence of deterioration.
7.
Design.
(a)
Open-air pavilions, with the exception of traditional chickee huts, pergolas and other structures with only partial or slatted roofs, shall incorporate the same types of building materials and be consistent with the architectural theme or style of the main or principal building.
(b)
At the request of a property owner, the community development director may approve the use of different building materials or alternate architectural themes or styles when such materials, themes or styles are complementary to the main or principal building.
(c)
Should the community development director deny the request for different building materials or alternate architectural themes or styles, a property owner may appeal this decision to the planning commission by submitting a written request for a hearing to the community development director within thirty (30) calendar days of the date of the determination. The appeal shall be placed on the next available agenda and the decision of the planning commission shall be final, subject only to judicial review by writ of certiorari.
I.
Mechanical equipment. All non-roof-mounted mechanical equipment shall be located behind the front building face of the principal structure in either the side yard or the rear yard. Such equipment shall be located adjacent to the principal structure whenever practicable, provided, however, that all mechanical equipment shall be located at least five (5) feet from the side property line and at least seven and one-half feet (7½) from the rear property line.
J.
Minimum landscaped area.
1.
All single-family dwellings shall have a minimum landscaped area of thirty percent (30%).
2.
All single-family dwellings (both one and two story) shall provide a minimum landscaped area of fifty (50) percent in the required twenty-five-foot front yard setback. Properties with frontage along urban collector roads (Lighthouse Drive and Prosperity Farms Road) shall provide a minimum landscaped area of forty (40) percent in the required twenty-five-foot front yard setback. Properties having an irregular lot shape, meaning a lot which is not close to rectangular or square and in which the width of the property at the front property line is less than required by the underlying zoning district, shall provide a minimum landscaped area of twenty-five (25) percent in the required twenty-five-foot front yard setback.
3.
A property owner who meets the overall minimum landscaped area requirement set forth in subsection (1) above and who does not meet the minimum landscaped area requirement in the twenty-five-foot front yard setback set forth in subsection (2) above may request a waiver of up to five (5) percent of the minimum required area by filing a request with the Community Development Department. The request shall be forwarded to the Planning Commission for final action. A property owner seeking such a waiver shall be required to demonstrate to the Planning Commission that he or she has made a reasonable attempt to comply with the required minimum landscaped area within the front yard setback and has mitigated any deficiency through the installation of enhanced landscaping materials, the use of permeable hardscape materials or some other acceptable means.
For the purposes of this subsection, the term minimum landscaped area shall mean a pervious landscaped area unencumbered by structures, buildings, paved parking lots, sidewalks, sports courts, pools, decks, or any impervious surface. Landscape material shall include, but not be limited to, grass, ground covers, bushes, shrubs, hedges or similar plantings, or decorative rock or bark. No landscape material shall be used for parking. However, pervious surfaces used for the parking of recreational equipment in side and rear yards shall be included in the calculation of the minimum landscaped area.
With respect to building permits for renovations of existing single-family dwellings, the minimum landscaped area standards shall apply only to the extent that the proposed scope of work impacts the applicable standard.
K.
Maximum driveway width in swale. The total width of driveways from the edge of the public roadway to the abutting privately-owned property shall not exceed a total of thirty-two feet in width at the property line, excluding flares. For lots with ninety (90) or more feet of public roadway frontage, the total width of driveways from the edge of the public roadway to the abutting privately-owned private shall not exceed a total of forty (40) feet in width at the property line, excluding flares. Each side of a flared driveway shall be no more than three (3) feet wider than the rest of the driveway.
(Ord. No. 17-71; Ord. No. 9-85, § 2, 6-27-85; Ord. No. 17-90, § 2, 6-28-90; Ord. No. 29-95, § 2, 9-28-95; Ord. No. 23-2003, § 5, 9-11-03; Ord. No. 2006-24, § 2.L.2, 11-9-06; Ord. No. 2009-04, § 4, 4-23-09; Ord. No. 2012-03, § 3, 3-22-12; Ord. No. 2014-06, § 2, 7-24-14; Ord. No. 2022-09, §§ 2, 3, 4-28-22; Ord. No. 2022-18, § 2, 10-27-22; Ord. No. 2023-17, § 2, 10-12-23; Ord. No. 2024-02, § 2, 1-25-24)
A.
Uses permitted. Within any R-2 multiple-family dwelling district, no building structure, land or water shall be used, except for one (1) or more of the following uses:
1.
Any use permitted in the R-1 single-family dwelling district.
2.
Churches.
3.
Multiple-family dwelling structures of not more than four (4) dwelling units.
4.
Detached fence storage areas.
5.
Satellite dish antenna.
6.
Community residential home of seven (7) to fourteen (14) residents.
B.
Building height regulations. No main building shall exceed two (2) stories or thirty (30) feet in height, whichever be less.
C.
Building site area regulations.
1.
For single-family dwellings the same as for the R-1 single-family dwelling district.
2.
For two-family dwelling structures the minimum lot or building site area shall be eight thousand (8,000) square feet and have a width of not less than seventy-five (75) feet.
3.
For dwelling structures having in excess of two (2) dwelling units not less than four thousand (4,000) square feet of lot area shall be added to the site for each dwelling unit in excess of two (2). No main building, however, shall occupy more than thirty-five (35) percent of the site area.
D.
Yard space regulations.
1.
Front yard. There shall be a front yard of not less than twenty-five (25) feet measured from the street line to the front building line.
2.
Rear yard. There shall be a rear yard of not less than twenty (20) feet measured from the rear building line to the rear lot line.
3.
Side yards. There shall be a side yard on each side of the side building line of not less than ten (10) feet. In the case of corner lots, no building and no addition to any building shall be erected or placed nearer than twenty (20) feet to the side street line of any such lot.
(a)
For a distance of one (1) block on streets intersecting U.S. [Highway No.] 1, measured from the right-of-way line of said U.S. [Highway No.] 1, side yards of at least twenty-five (25) feet in depth shall be provided.
E.
Floor area regulations. In multiple-family dwelling structures, each dwelling unit having one (1) bedroom shall have a minimum floor area of seven hundred fifty (750) square feet. An additional one hundred fifty (150) square feet of floor area shall be required for each additional bedroom provided.
F.
Off-street parking regulations.
1.
For single-family dwellings, the same as for the R-1 single-family dwelling district.
2.
For each multiple-family dwelling unit, there shall be provided two (2) or more parking spaces measuring at least nine (9) feet by eighteen (18) feet (one hundred sixty-two (162) square feet) each in accordance with the following formula: Two (2) such spaces shall be provided for each dwelling unit containing not more than two (2) bedrooms, and two and one-half (2½) of such spaces shall be provided for each dwelling unit containing three (3) or more bedrooms, with the provision that for an uneven number of units, the fractional space result produced by the application of such formula shall count as a full space. (For examples: four (4) dwelling units containing three (3) or more bedrooms shall require ten (10) off-street parking spaces; three (3) dwelling units containing three (3) or more bedrooms shall require eight (8) off-street parking spaces.)
3.
For churches, there shall be provided one (1) off-street parking space measuring at least nine (9) feet by eighteen (18) feet (one hundred sixty-two (162) square feet) for each four (4) people accommodated within the church auditorium.
4.
For schools, there shall be one (1) off-street parking space measuring at least nine (9) feet by eighteen (18) feet (one hundred sixty-two (162) square feet) for every one thousand (1,000) square feet of floor area.
G.
Community residential home regulations.
1.
When a site for a community residential home has been selected by a sponsoring agency, the agency shall notify the mayor and village manager in writing and include in such notice the specific address of the site, the residential licensing category, the number of residents, and the community support requirements of the program. Such notice shall also contain a statement from the district administrator of HRS indicating the need for and the licensing status of the proposed community residential home and specifying how the home meets applicable licensing criteria for the safe care and supervision of the clients in the home. The HRS district administrator shall also provide the Village the most recently published data compiled that identifies all community residential homes in the district in which the proposed site is to be located.
2.
The village shall review the notification of the sponsoring agency in accordance with the zoning code.
3.
The village shall not deny the siting of a community residential home unless the village establishes that the siting of the home at the site selected:
(a)
Does not otherwise conform to existing zoning regulations applicable to other multifamily uses in the area;
(b)
Does not meet applicable licensing criteria established and determined by the Florida Department of Health and Rehabilitative Services, including requirements that the home be located to assure the safe care and supervision of all clients in the home;
(c)
Would result in such a concentration of community residential homes in the area in proximity to the site selected, or would result in a combination of such homes with other residences in the village, such that the nature and character of the area would be substantially altered. A home that is located within a radius of one thousand two hundred (1,200) feet of another existing community residential home in a multifamily zone shall be an overconcentration of such homes that substantially alters the nature and character of the area. A home that is located within five hundred (500) feet of an area of single-family zoning substantially alters the nature and character of the area.
(d)
All distance requirements in this section shall be measured from the nearest point of the existing home or area of single-family zoning to the nearest point of the proposed home.
4.
A dwelling unit housing a community residential home shall be subject to the same village laws and ordinances applicable to other noncommercial, residential family units in this zoning district.
H.
Mechanical equipment. All non-roof mounted mechanical equipment shall be located behind the front building face of the principal structure in either the side yard or the rear yard. Such equipment shall be located adjacent to the principal structure whenever practicable, provided, however, that all mechanical equipment shall be located at least five (5) feet from the side property line and at least seven and one-half feet (7½) from the rear property line.
(Ord. No. 204-69, §§ 1, 2; Ord. No. 17-71, § 2; Ord. No. 10-73, §§ 3, 4, 9-13-73; Ord. No. 9-85, § 3, 6-27-85; Ord. No. 17-90, § 3, 6-28-90; Ord. No. 2012-03, § 4, 3-22-12; Ord. No. 2014-06, § 2, 7-24-14)
Editor's note— Subsection E of this section derived from Ord. No. 204-69, § 2, which did not specifically amend the 1970 Code and was codified as subsection E at the discretion of the editor.
(a)
Locations permitted.
(1)
Artificial turf (also referred to as synthetic grass) shall only be permitted on lots improved with a single-family or two-family dwelling.
(2)
Artificial turf is limited to rear and side yards.
(3)
Artificial turf shall not be permitted in the front yard or in any area visible from a public right-of-way (even if in the rear or side yard), unless it is placed in between paver blocks or similar materials in a manner where the area for the artificial turf does not exceed four (4) inches in width and it does not exceed fifty (50) percent of the total area using the paver blocks or similar materials. Screening, as approved by the community development department, may be used in order to comply with visibility requirement.
(4)
No artificial turf shall be placed in any public right-of-way.
(b)
Minimum material standards. All artificial turf shall comply with the following minimum standards:
(1)
Artificial turf shall consist of green lifelike individual blades of grass that emulate natural turf in look and color, as approved by the Village building official, and shall have a minimum pile height of one and one-half (1 ½) inches, unless otherwise approved by the Village building official, and shall have a minimum tufted weight of fifty-six (56) ounces per square yard. Putting greens shall be permitted with a minimum pile height of one-quarter (¼) inch; however, putting greens shall be located in the rear yard only, shall not count toward the minimum landscaped area as set forth in subsection (e) below and shall require submission of a drainage plan along with the building permit application.
(2)
Artificial turf installations shall have a minimum permeability of thirty (30) inches per hour per square yard.
(3)
All artificial turf shall have a minimum fifteen (15) year manufacturer's warranty that protects against color fading and a decrease in pile height.
(4)
Artificial turf shall be lead-free.
(5)
All materials must include test documentation which declares that the artificial turf yarn and backing materials are disposable under normal conditions, at any U.S. landfill station (total content leach protocol (TCLP) test).
(6)
The use of indoor or outdoor carpeting as a replacement for artificial turf or natural turf shall be prohibited.
(7)
Infill materials for artificial turf are limited to organic materials and sand with a non-toxic coating.
(c)
Installation, maintenance, and repair.
(1)
All artificial turf shall, at a minimum, be installed according to the manufacturer's specifications.
(2)
All artificial turf installations shall be anchored to ensure that the turf withstands the effects of wind.
(3)
All seams shall be nailed and glued, not sewn, and edges shall be trimmed to fit against all regular and irregular edges to resemble a natural look.
(4)
If artificial turf is planned to be installed immediately adjacent to a seawall, the artificial turf shall be pinned or staked behind the seawall. No artificial turf or installation mechanism shall be attached directly to or placed on a seawall or seawall cap.
(5)
Proper drainage shall be provided for all artificial turf installations to prevent excess runoff or the pooling of water.
(6)
Artificial turf shall be visually level, with the grain pointing in a single direction.
(7)
An appropriate barrier device (e.g., concrete mow strip, bender board, brick pavers, river rock, landscaping) is required to separate artificial turf from soil and live vegetation.
(8)
Precautions for installation around existing trees shall be monitored and may be restricted to ensure tree roots are not damaged with the installation of the base material and that the overall health of the tree will not be compromised.
(9)
All artificial turf shall be maintained in a green, fadeless condition free of dirt, mud, stains, weeds, debris, tears, holes, and impressions. Maintenance shall include, but not be limited to cleaning, brushing and debris removal; repairing of depressions and ruts to maintain a visually-level surface; elimination of any odors, flat or matted areas, weeds, and evasive roots; and all edges of the artificial turf shall not be loose and must be maintained with appropriate edging or stakes.
(10)
All artificial turf must be replaced if it falls into disrepair with fading or holes or loose areas. Replacement and/or repairs shall be performed with like for like materials from the same manufacturer, if possible, and done so in a manner that results in a repair that blends in with the existing artificial turf.
(11)
An owner or applicant shall obtain a building permit from the community development department prior to the installation of any artificial turf.
(12)
The village or other public entity or utility company may remove artificial turf located within an easement at any time for any reason, including, but not limited to, providing underground access for utility work. The property owner shall bear and pay any and all costs to replace or reinstall the artificial turf.
(d)
Existing artificial turf. For those properties where artificial turf is currently installed and the artificial turf does not meet the requirements of this section, full compliance shall be required when the existing artificial turf is replaced.
(e)
Pervious area. Artificial turf installed in compliance with the requirements of this section shall be considered as one hundred (100) percent pervious area and shall count toward the required minimum landscaped area.
(Ord. No. 2023-14, § 2, 8-24-23)
A.
Uses permitted. Within any R-3 apartment dwelling district, no building structure, land or water shall be used, except for one (1) or more of the following uses:
1.
Any use permitted in the R-2 multiple-family dwelling district.
2.
Multiple-family dwelling structures having five (5) or more dwelling units.
B.
Building height regulations. For buildings in excess of two (2) stories or thirty (30) feet in height, five (5) feet shall be added to the required front, rear and side yard setbacks for each story in excess of two (2). No main building, however, shall occupy more than thirty-five (35) percent of the site area so required.
C.
Building site area regulations.
1.
For two-family dwelling structures the minimum lot or building site area shall be eight thousand (8,000) square feet, and have a minimum width of not less than seventy-five (75) feet.
2.
For dwelling structures having in excess of two (2) dwelling units, not less than two thousand (2,000) square feet of lot area shall be added to the site for each dwelling unit in excess of two (2).
3.
No structures shall occupy more than thirty-five (35) percent of the site area.
D.
Yard space regulations.
1.
Front yard.
(a)
For a main structure of two (2) stories or less, there shall be a front yard of not less than thirty-five (35) feet measured from the street line to the front building line, except along both sides of U. S. [Highway] No. 1, no setback less than one hundred (100) feet in depth measured from the front building line shall be provided. For a distance of one (1) block on streets intersecting U. S. [Highway] No. 1, measured from the right-of-way line of said U. S. No. 1, side yards of at least twenty-five (25) feet in depth shall be provided.
(b)
For structures in excess of two (2) stories in height, the front yard depth shall be controlled by the provisions defined in paragraph B of this section.
2.
Rear yard.
(a)
For structures of two (2) stories or less, the same as for the R-1 and R-2 districts.
(b)
For structures in excess of two (2) stories in height, the rear yard depth shall be controlled by the provisions defined in paragraph B of this section.
3.
Side yard.
(a)
For structures of two (2) stories or less, the same as for the R-1 and R-2 districts.
(b)
For structures in excess of two (2) stories in height, the side yard requirements shall be controlled by the provisions defined in paragraph B of this section.
4.
Exceptions.
(a)
On corner lots intersecting U. S. Highway No. 1 where the front of the building is on the intersecting street and the side yard of the build ing is on U. S. Highway No. 1, the minimum side yard setback on U. S. Highway No. 1 shall be one hundred (100) feet measured from the street line to the side building line, and only for structures in excess of twenty (20) stories in height shall have five (5) feet be added to the required side yard for each story added to the building in excess of twenty (20).
(b)
On lots bordering the established bulkhead line, the Intracoastal Waterway line or any existing bulkhead, the maximum required rear yard and side yard setbacks shall be twenty (20) feet from the established bulkhead line, Intracoastal Waterway line or existing building, whichever is closest in distance to the building line; provided, however, that said bulkhead line, Intracoastal Waterway line or existing bulkhead is at least five hundred (500) feet from the opposite bulkhead line, Intracoastal Waterway line or existing bulkhead, whichever is closest.
E.
Off-street parking regulations.
1.
For each multiple-family dwelling structure, there shall be provided two (2) or more parking spaces measuring at least nine (9) feet by eighteen (18) feet (one hundred sixty-two (162) square feet) each, in accordance with the following formula:
Two (2) such spaces shall be provided for each dwelling unit containing not more than two (2) bedrooms and two and one-half (2½) of such spaces shall be provided for each dwelling unit containing three (3) or more bedrooms, with the provision that for an uneven number of units, the fractional space result produced by the application of such formula shall count as a full space; provided, however, that in multiple-family dwellings containing more than thirty (30) dwelling units, for each dwelling unit in excess of thirty (30) units and up to sixty (60) units, one (1) such space shall be provided for each dwelling unit containing not more than two (2) bedrooms, and for each dwelling unit in excess of sixty (60) dwelling units, one and one-half (1½) such spaces shall be provided for each dwelling unit containing not more than two (2) bedrooms and two and one-half (2½) of such spaces shall be provided for each dwelling unit containing three (3) or more bedrooms, with the provision that for an uneven number of units, the fractional space result produced by the application of such formula shall count as a full space. (For example: Thirty (30) dwelling units containing two (2) bedrooms each shall require sixty (60) off-street parking spaces; sixty (60) dwelling units containing two (2) bedrooms each shall require ninety (90) off-street parking spaces; and ninety (90) dwelling units containing two (2) bedrooms each shall require one hundred thirty-five (135) off-street parking spaces.)
2.
For churches, the same as for the R-2 multiple-family dwelling district.
3.
For schools, the same as for the R-2 multiple-family dwelling district.
F.
Floor area regulations.
1.
In multiple-family dwelling structures, each dwelling unit having one (1) bedroom shall have a minimum floor area of seven hundred fifty (750) square feet. An additional one hundred fifty (150) square feet of floor area shall be required for each additional bedroom provided.
(Ord. No. 10-73, §§ 5, 6, 9-13-73; Ord. No. 13-74, § 1; Ord. No. 17-74, § 1; Ord. No. 2014-06, § 2, 7-24-14)
A.
General description. This mixed-use district will encourage the redevelopment of the US Highway 1 corridor into a vibrant mixed-use place for businesses, visitors, and residents of North Palm Beach. A Citizens Master Plan, adopted in 2016, envisioned the US Highway 1 corridor evolving into a better working and living environment with walkable and bikeable streets, compact mixed-use buildings, and convenient access to many forms of transportation. The C-MU zoning district is a form-based code that uses clear and predictable standards to guide redevelopment into this pattern.
B.
Allowable uses.
1.
Table 1 indicates allowable uses in the C-MU zoning district.
a.
The uses listed in Table 1 are grouped into four (4) use groups: Residential Uses, Lodging Uses, Business Uses, and Civic & Education Uses.
b.
In one (1) of the columns following each listed use, a symbol is provided to indicate that:
i)
This use is permitted by right; or
ii)
This use may be approved as a special exception; see section 45-16.2 for standards and procedures; or
iii)
This use, like other uses not listed in Table 1, is not permitted in the C-MU district.
c.
Terms in Table 1 are defined in section 45-2 under "Use Groups."
d.
Also refer to section 45-16.1 on uses that are similar to uses listed in Table 1.
Table 1 Allowable Uses
1
Only as part of a mixed-use development that complies with Future Land Use Policy
1.B.3 in the Comprehensive Plan.
2
;hg;Subject to the same requirements as apply in the R-2 zoning district.
2.
The Comprehensive Plan establishes restrictions on certain properties through classifications in the future land use atlas or through specific policies. Current examples in the C-MU district include the following parcels, which are indicated on the regulating plan:
a.
639 US Highway 1 (assisted living facility) requires PUD approval as a mixed-use development pursuant to Future Land Use Policy 1.B.3.
b.
201-230 Mariner Court (condominium) is classified "Medium-Density Residential," which restricts it to residential uses only, with density restricted by Special Policy 5.18.
c.
555 US Highway 1 (Faith Lutheran Church) is classified "Public Buildings & Grounds."
d.
501 US Highway 1 (Village Hall) and 303 Anchorage Drive (Library) are classified "Public Buildings & Grounds."
e.
560 US Highway 1 (Police Station) is classified as "Other Public Facilities."
C.
Regulating plan and street frontages.
1.
The C-MU zoning district includes a regulating plan that shows existing conditions (e.g. lot lines, building footprints, and rights-of-way) and then defines how and where certain regulations will apply (e.g. setbacks and height restrictions). The regulating plan for the C-MU district is presented in Figures 1 through 4.
2.
The regulating plan also defines the street frontages of all lots as either corner, mid-block, or local street. These street frontage types determine allowable building frontages. The building frontage type selected by a landowner determines many of the specific regulations that will apply to redevelopment, including the build-to zone or setback along the street frontage. See subsection 45-31.D for details.
3.
The remainder of the C-MU district provides standards on these subjects:
a.
Site and bulk standards are provided in subsection 45-31.E, including setbacks, build-to zone, building frontage standards, building height, floor and ceiling height, density, and landscape standards.
b.
Architectural features are addressed in subsection 45-31.F, including entrances, facade transparency, awnings, balconies, and bay windows.
c.
Street, alley, and easement standards are provided in subsection 45-31.G.
d.
Parking standards are provided in subsection 45-31.H.
e.
Review procedures are provided in subsection 45-31.I.
Figure 1 Regulating Plan, Yacht Club Dr. to Anchorage Dr (north)
Figure 2 Regulating Plan, Anchorage Dr (north) to Lighthouse Dr.
Figure 3 Regulating Plan, Lighthouse Dr. to Ebbtide Dr.
Figure 4 Regulating Plan, Ebbtide Dr. to Earman River
D.
Building frontage types.
1.
The allowable building frontage types for each lot are determined by the designated street frontage for that lot.
a.
Three (3) types of street frontages are defined on the regulating plan for existing streets: Corner, Mid-block, or Local Street.
b.
A landowner may select any of the allowable building frontage types shown on Table 2 for the street frontage shown on the regulating plan.
i)
For lots with two (2) street frontages, building frontages must be selected for each street frontage.
ii)
A landowner with enough frontage on a street to accommodate two (2) or more permitted building frontages may designate the corresponding building frontages for that street frontage.
iii)
Regulations for each building frontage are summarized in Table 3 through 8.
c.
Table 2 also shows a fourth street frontage, which applies only if a landowner chooses to construct a new street between US Highway 1 and the alley in the areas designated on the regulating plan; see subsection 45-31.G for details.
Table 2 Allowable Building Frontages For Each Street Frontage
Key:
Building frontage permitted: ●
Building frontage not permitted: ○
Building frontage permitted beyond 150' from US Highway 1 only: ●
1
2.
Tables 3 through 8 summarize the regulations for each building frontage. Regulations that do not vary by building frontage type, such as permitted uses and building heights, are described throughout section 45-31.
Table 3 Building Frontage: GALLERY
Table 4 Building Frontage: STOREFRONT
Table 5 Building Frontage: FORECOURT
Table 6 Building Frontage: STOOP
Table 7 Building Frontage: CANOPY
Table 8 Building Frontage: LOBBY
E.
Site and bulk standards.
1.
Setbacks and build-to zones.
a.
Setbacks. Minimum setbacks between buildings and side, rear and Local Street front lot lines are illustrated on Figure 5 and established as follows:
i)
Side setbacks ("A") are zero (0) feet.
ii)
Rear setbacks ("B") are zero (0) feet (measured from the new easement for lots located along alleys). If the village is legally required, through the application of state law or otherwise, to approve buildings in excess of the maximum permitted height within C-MU district, all buildings or portions thereof of six (6) stories or more shall be set back at least seventy-five (75) feet from the new easement for lots located along alleys or from the rear property line, as applicable. An additional ten (10) foot setback shall be required for each story or portion thereof above six (6) stories. These setbacks shall apply wherever height limitations are depicted on the regulating plan (figures 1 through 4).
iii)
Local Street front setbacks ("C") are fifteen (15) feet.
b.
Build-to zone. A build-to zone is specified for each frontage type; see Tables 3 through 8. The build-to zone is parallel to the street frontage and is measured from the front lot line, except along US Highway 1 where it is measured from the new sidewalk easement which is required by subsection 45-31.G. Figure 5 shows build-to zones as "D" for mid-block lots and as "E" for corner lots and lots facing new streets. A portion of a building's facade that faces that street frontage must be placed within the specified build-to zone (see explanation in subsection 45-31.E.2).
i)
For properties facing New Streets as defined in subsection 45-31.G, build-to zones ("D" and "E") are measured from the outer edges of the new sidewalks (see Figure 12).
ii)
Allowable encroachments beyond the build-to zone are specified in subsection 45-31.F.3.
iii)
For properties facing Local Streets, the front setback ("C") shall be observed instead of the build-to zone.
Figure 5 Setbacks and Build-To Zones
2.
Building frontage standards. The portion of a new building's façade that is located in the build-to zone is called the building frontage. The width of the building frontage must comply with the building frontage percentage standards for each building frontage type (see Tables 3 through 8).
a.
Building frontage percentages are calculated by dividing the width of a building or buildings lying within the build-to zone (A) by the width of the lot along the same street frontage (B), as shown in Figure 6.
b.
Minimum building frontage percentages are specified for each building frontage type in Tables 3 through 8.
i)
If two (2) building frontage types are used on a wide street frontage, the specified percentages are measured for each type.
ii)
When buildings are being added or expanded, waivers may be requested in response to specific site limitations.
c.
For certain architectural features described in this Code, a portion of a building's facade that lies outside the build-to zone may be counted as building frontage. Examples are forecourts or lobby entrances that comply with the standards in Tables 5 or 8.
d.
For properties with multiple street frontages, see Figure 5.
Figure 6 Building Frontage Percentages
3.
Density. Residential density in the C-MU zoning district may not exceed twenty-four (24) units per acre. The acreage in this formula is the total area enclosed by the lot lines of the site being developed, including existing easements and including any land being dedicated for additional right-of-way or easements. The residential density of a mixed-use development in the C-MU zoning district shall be increased from twenty-four (24) to thirty-six (36) units per acre provided a development is consistent with the workforce housing density bonus granted by Policy 1.B.2 in the Comprehensive Plan.
4.
Building height.
a.
Buildings may be up to four (4) stories tall in the C-MU zoning district, except that:
i)
Within twenty-five (25) feet of the rear property line, no portion of a building may exceed two (2) stories.
ii)
Within fifty (50) feet of the rear property line, no portion of a building may exceed three (3) stories.
iii)
The 25-foot and 50-foot restrictions are depicted on the regulating plan.
iv)
A waiver to allow five (5) stories rather than four (4) stories may be requested on land north of Anchorage Drive North only.
b.
For the purpose of calculating the number of stories in a building, stories shall be defined as the space between finished floor and finished ceiling, adjusted as follows:
i)
Each level devoted to parking is considered as individual story when calculating the number of stories in a building, except where parking levels are screened by other rooms in the same building or screened by a liner building that is at least two (2) stories tall with rooms at least twenty (20) feet deep.
ii)
When parking levels are constructed on a slope or are connected by sloping or circular ramps, the number of stories will be based on the non-sloped area. If there are no non-sloped areas, the number of stories will be counted as the highest parking level plus each parking level below.
iii)
A mezzanine will not count towards the number of stories provided that the total area of mezzanine level is less than forty (40) percent of the floor area of the main story below.
iv)
Buildings may include a partial story above the maximum number of stories otherwise allowed provided the floor area of the partial story is less than 30% of the floor area of the story below. Developers are encouraged to utilize this allowance on portions of buildings that are closest to street intersections and for architectural features such as towers or cupolas.
v)
Rooftop gardens, pools, restaurants or cocktail lounges are permitted. All rooftop facilities shall be sufficiently screened from the street and adjacent properties. Adequate trees, shrubs, or greenspace shall be provided on any active rooftop facility. Only portions of the rooftop that are enclosed will count as a partial building story. A waiver may be granted to allow a rooftop restaurant or cocktail lounge to exceed the 30% partial story allowance in 45-31(4)(b)(iv).
c.
The maximum height of a building in feet is controlled by the maximum ceiling heights for individual stories, as provided in subsection 45-31.E.5.
5.
Floor and ceiling height.
a.
This code provides standards for the elevation of certain ground-story floors and minimum/maximum dimensions for ceiling heights. Figure 7 and Table 9 illustrate how these standards are measured:
(i)
Floor elevations are measured from the existing or anticipated sidewalk to the top of the finished floor of the ground story.
(ii)
Ceiling heights are measured from the top of the finished floor to the underside of the tallest finished ceiling of each story; see exceptions in subsection b.
Figure 7 Floor and Ceiling Measurements
Table 9 Floor and Ceiling Standards
b.
Ceiling height exceptions. The minimum and maximum ceiling height standards in Table 9 do not apply in the following circumstances:
i)
A story in or under a building that is devoted to parking is counted as a story when calculating the number of stories in a building, but does not need to comply with the minimum or maximum ceiling heights in Table 9.
ii)
When the total area of mezzanine level is less than 40 percent of the floor area of the story below, the mezzanine level does not need to comply with the minimum ceiling heights in Table 9.
iii)
Individual rooms do not need to comply with the minimum or maximum ceiling heights in Table 9 provided that the remainder of that story complies with the minimum and maximum heights.
6.
Landscape standards.
a.
Landscaping required. Landscaping shall be required in the following areas as required by the village's landscaping requirements:
i)
Miscellaneous landscape elements, as required in section 45-88;
ii)
Off-street parking lots, as required in section 45-89;
iii)
Site perimeters, as required in section 45-90; and
iv)
Base of foundation, as required by section 45-91.
b.
Special requirements for C-MU zoning district. The village's landscaping requirements contain certain special requirements for the C-MU zoning district:
i)
Section 45-90 requires minimum buffer widths for site perimeters.
• These buffer widths do not apply in front of buildings that meet the standards for a gallery, storefront, or canopy building frontage type. See Table 45-90.
• Along US Highway 1, buffer strips in front yards may not be planted on a sidewalk easement. See section 45-34.1.G.
ii)
Section 45-91 requires landscaped areas around the base of foundations. This requirement does not apply in front of buildings that meet the standards for a gallery, storefront, or canopy building frontage type.
F.
Architectural features. Requirements are provided below for the location of a building's main entrance and the percentage of transparent openings on its façade. Allowances are then provided for certain architectural elements that may encroach into setbacks and build-to zones and in some cases over rights-of-way.
1.
Main entrance.
a.
A building's main entrance is its principal point of access for pedestrians. All buildings must have their main entrance facing a street frontage, or a courtyard or forecourt that is entered from a street frontage. Additional entrances are encouraged.
b.
Buildings fronting on two (2) streets must have a pedestrian entrance on both streets.
c.
Additional rules for storefront doors are provided in Table 4.
2.
Façade transparency.
a.
Transparency means the amount of transparent window glass or other openings in a building's facade along a street frontage, relative to the overall surface area of the facade. This ratio is expressed as a percentage and is calculated separately for the ground story of a facade and for each upper story.
b.
Building facades along a street frontage must meet the minimum façade transparency requirements in Table 10 to provide natural surveillance of sidewalks and streets, to provide interior daylight, and to allow clear views into storefronts.
c.
Façade transparency percentages are calculated for the area between the finished floor and finished ceiling of each story along each street frontage; see Figure 8. For the purposes of these measurements:
i)
Glazed windows and doors with tinted glass or applied films will be considered transparent if they transmit at least 50% of visible daylight.
ii)
The transparent area of windows and doors includes rails and stiles as well as muntin bars and other separators within primarily glazed areas; but the transparent area excludes outer solid areas such as jambs, sills, and trim.
Table 10 Facade Transparency Percentages
Figure 8
Calculating Façade Transparency
3.
Encroachments. Many architectural elements described in subsections 45-31.D and 45-31.F may project beyond the closest point to a property line where an exterior wall may be constructed. Table 11 identifies the allowable projections; the key column refers to Figure 5.
a.
On private property. These elements may project into side or rear setbacks and project forward beyond the build-to zone including onto sidewalk easements to the extent permitted by Table 11 provided this Code's requirements for each element are met.
b.
On public property. Some of these elements may also extend horizontally over a public right-of-way in accordance with those regulations to the extent permitted by Table 11 provided this Code's requirements for each element are met in addition to these general requirements:
i)
Must maintain at least ten (10) feet of vertical clearance.
ii)
Must meet any insurance or liability requirements established by the Village Attorney.
iii)
Must obtain prior approval from the responsible entity for any encroachment over a right-of-way not maintained by the village, such as US Highway 1.
c.
Sidewalk cafes with outdoor table service may be provided on public sidewalks when in compliance with all village codes.
Table 11 Encroachments
4.
Awnings.
a.
An awning is a flexible cover that projects outward from a building's exterior wall to shield a window, door, sidewalk, or other space below from the elements.
b.
To encourage the construction of awnings, awnings are allowed to project horizontally beyond the closest point to a property line where an exterior wall may be constructed, including over a public right-of-way. See subsection 45-31.F.3 for allowances and limitations on such encroachments. To qualify for these encroachments, the awning must meet the following requirements:
i)
The depth of the awning from the face of the building must be at least four (4) feet.
ii)
The height of the awning from the sidewalk to the underside of the awning must be at least ten (10) feet.
iii)
High-gloss or plasticized fabrics may not be used.
iv)
Awnings may not be back-lit.
Table 12 Awning Dimensions
5.
Balconies.
a.
A balcony is an unenclosed private open space that typically projects outward from a building's exterior wall.
b.
To encourage the construction of balconies, balconies are allowed to project horizontally beyond the closest point to a property line where an exterior wall may be constructed. Balconies in upper stories may also project horizontally over a public right-of-way. See subsection 45-31.F.3 for allowances and limitations on such encroachments. To qualify for these encroachments, the balcony must meet the requirements in Table 13.
Table 13 Balcony Dimensions
6.
Bay windows.
a.
A bay window creates interior space that projects outward from a building's exterior wall.
b.
To encourage the construction of bay windows, bay windows are allowed to project horizontally beyond the closest point to a property line where an exterior wall may be constructed. Bay windows in upper stories may also project horizontally over a public right-of-way. See subsection 45-31.F.3 for allowances and limitations on such encroachments. To qualify for these encroachments, the balcony must meet the requirements in Table 14.
Table 14 Bay Window Dimensions
G.
Street, alley, and easement standards.
1.
New streets. Landowners may choose to construct a new street between US Highway 1 and the alley in the areas designated on the regulating plan. The following standards apply to any such new streets:
a.
Cross-section. New streets shall be designed in accordance with Figure 12 and constructed by the developer concurrently with the development.
b.
Other design and construction standards. On subjects where Figure 12 does not provide design guidance, for instance driveway widths and curb radii at intersections, design shall be in accordance with NACTO's Urban Street Design Guide.
i)
Pavement, subgrade, drainage, and utilities must meet construction specifications of the Village of North Palm Beach.
ii)
The construction specifications for sidewalks in section 24-43 apply along new streets.
iii)
Street trees must be planted and maintained on both sides of new streets.
iv)
Where an Applicant demonstrates that an alternative street design achieves a better outcome, waivers may be granted from specific standards in Figure 12.
c.
Ownership and maintenance. New streets shall be owned and maintained privately unless another entity acceptable to the Village of North Palm Beach accepts this responsibility. Irrespective of ownership and maintenance, landowners must guarantee perpetual public access to new streets in a form suitable to the Village Attorney.
d.
Build-to zones. Build-to zones for buildings facing a new street will be determined in accordance with subsection 45-31.E.1 irrespective of the new street's ownership.
e.
Building frontage standards. Building frontage standards for buildings facing a new street will be determined in accordance with subsection 45-31.E.2.
2.
Existing alleys. The C-MU district is served by alleys on both sides of US Highway 1 that are essential for general circulation and for access for services. To protect and enhance these functions, the following standards apply during the development process to all properties that abut an existing alley:
a.
A 7-foot perpetual transportation and utility easement must be dedicated to the village along the alley, in a form acceptable to the Village Attorney.
b.
Setbacks for buildings along alleys are specified in subsection 45-31.E.1.
c.
Setbacks for surface parking along alleys are specified in Table 15 (subsection 45-31.H).
d.
The 5-foot landscaped strip required by section 45-90 must be planted and maintained adjoining the new easement.
e.
Refuse containers and other service or utility equipment must meet the same setbacks as for surface parking. Refuse container areas must be screened in accordance with section 45-88.
3.
Sidewalk easements. All properties in the C-MU district abut US Highway 1, a regional highway that also serves local travelers in vehicles, on foot or bike, or using public transit. To enhance non-vehicular travel along this corridor, the following standards apply during the development process:
a.
A 7-foot perpetual sidewalk easement must be dedicated to the village along the US Highway 1 frontage, in a form acceptable to the Village Attorney.
b.
This easement must be paved at the time of development to the same elevation as the adjoining sidewalk in accordance with the construction specifications in section 24-43.
c.
The landscape strip required by section 45-90 must be planted and maintained on the remainder of the property beyond the sidewalk easement, except that no trees are required in this strip.
H.
Parking standards.
1.
Location of parking lots. Surface parking lots must be set back from streets at least the distances provided in Table 15, as illustrated in Figure 13.
Figure 13 Setbacks for Surface Parking Lots
Table 15 Setbacks for Surface Parking Lots
2.
Parking space ratios. Properties will retain the existing parking ratios as of the date of adoption of the CMU District, which are listed in Table 16.B. In order for properties to be granted the mixed-use district parking ratios listed in 16.A, a property must be made considerably closer to the CMU requirements adopted in 2020, as outlined in Section 45-64 (4), or be an entirely new development. The ratios listed in Tables 16.A and 16.B establish the minimum number of on-site parking spaces unless adjusted as provided in subsection 3. Ratios based on square feet refer to the gross floor area.
Table 16.A Parking Space Ratios
1
Hotels with banquet or conference facilities, restaurants, or bars that are open
to the public shall provide a parking demand study and provide sufficient spaces for
visitors and employees.
2
;hg;A sufficient loading zone shall be provided to accommodate peak drop off and
pick up.
Table 16.B Parking Spaces Required
3.
Parking space adjustments. The number of on-site parking spaces calculated using Table 16a shall be adjusted under any one or more of the following circumstances:
a.
Mixed-use developments qualify for the shared-parking percentage reductions specified in Figure 14 provided the development includes at least 10% of its gross floor area in a second category on Figure 14 (residential, lodging, office, business, and civic/education uses).
b.
Each on-street parking space provided by the developer within ¼ mile of the on-site parking area will be counted as two (2) required parking spaces.
c.
No on-site parking spaces are required for an office, business, or civic/education use that occupies less than one thousand five hundred (1,500) square feet (up to three (3) such uses per acre).
d.
Up to half of the required spaces may be located up to five hundred (500) feet off-site in a dedicated or joint-use parking lot provided that permission to use those spaces is specified in a binding agreement that is reviewed and approved during the site plan and appearance review process.
e.
Restaurants may count each boat slip that is available to the public as one (1) parking space.
f.
Golf cart parking spaces may be counted as one (1) space, provided they meet the minimum dimensions of five (5) feet wide by ten (10) feet long. Up to ten (10) percent of a development's required parking spaces may be met by golf cart parking spaces.
f.
The required number of on-site parking spaces may also be reduced through the waiver process (see section 45-51) or may be increased by a special condition applied during the site plan and appearance review process (see sections 6-30-6-60).
g.
A deferred parking plan may be approved by the Village if a parking study is provided that demonstrates the need for parking is less than what is required by code, or the owner has demonstrated that an alternative means of access to the uses on the site justifies the deferral of the construction of a portion of the required parking spaces. The deferred parking plan shall:
i)
Be designed to contain sufficient space to meet the full parking requirements of the Code. The plan shall illustrate the layout for the full number of parking spaces, and shall designate which parking spaces are to be deferred.
ii)
Be designed so that the deferred parking spaces are not located in areas required for landscaping, buffer zones, or areas that would otherwise be unsuitable for parking spaces because of the physical characteristics of the land or other requirements of this Code.
4.
Physical standards for parking lots, driveways, and loading.
Figure 14 Shared Parking Reductions
a.
Physical standards for parking lots, driveways, and loading are provided in subsection 45-36.J.
b.
Parking lots shall be interconnected with adjoining properties where feasible. Connections help to minimize the number of driveways to US Highway 1 and to reduce unnecessary vehicular use of those driveways to reach adjoining properties.
i)
Prior to approval of new or reconfigured parking lots, landowners are required to make an irrevocable offer of cross-access to the adjacent parcel and must design and build their parking lot to accommodate cross-access.
ii)
When adjacent landowners seek approval of new or reconfigured parking lots, they will be required to reciprocate with a similar cross-access agreement and then must complete the physical connection.
iii)
Each landowner will control all rights to the use of their own parking spaces, but may choose to allow joint use of surplus parking spaces for a fee of their choosing or through private contracts with other parties.
c.
Excess driveways to US Highway 1 shall not be approved, and existing driveways shall be consolidated or eliminated wherever practicable.
i)
Driveways to US Highway No. 1 for two (2) adjacent, separately owned parcels should be located on their joint property line wherever possible.
ii)
On corner lots, driveways may be required to be located on the less-traveled street. In all cases, driveways may not be located closer than forty (40) feet to an intersection.
5.
Standards for parking garages. Parking spaces may be provided under or in buildings or in dedicated parking garages instead of being provided in uncovered surface parking lots. Such parking spaces need not comply with the minimum setbacks for surface parking lots. These parking spaces must be screened from view from all streets. Screening may be provided by rooms in the same building or with a liner building that is at least two (2) stories tall with rooms at least twenty (20) feet deep.
I.
Review procedures.
1.
Submittal and review procedures. Compliance with the standards of the C-MU district shall be evaluated during the site plan and appearance review process before building and other permits may be issued (see sections 6-30-6-60).
2.
Variances. Variances may be granted by the village to standards in the C-MU district using the same procedures and criteria the village uses in granting variances from other regulations (see section 45-50).
3.
Waivers. Waivers may be granted by the village to certain standards in the C-MU district in accordance with the applicable village procedures for granting waivers (see section 45-51), with these additional requirements:
a.
The waiver process in the C-MU district cannot be used to:
i)
Add uses that are not allowable under this Code.
ii)
Increase the allowable residential density.
iii)
Increase the allowable building height, except for the extra story that may be requested pursuant to 45-31.E.4.
b.
This additional finding must be made before the village approves a waiver in the C-MU district:
i)
The proposed waiver meets the intent of the Village of North Palm Beach Citizens' Master Plan Report, adopted by the village council on October 27, 2016, through Resolution 2016-73.
(Ord. No. 2020-06, § 15(Exh. 1), 9-24-20; Ord. No. 2023-09, § 2, 6-22-23)
Editor's note— Ord. No. 2020-06, § 15, adopted September 24, 2020, repealed § 45-31 and enacted a new § 45-31 as set out herein. Former § 45-31 pertained to C-A commercial district and derived from Ord. No. 10-72, § 1; Ord. No. 13-72, adopted July 13, 1972; Ord. No. 4-73; Ord. No. 10-73, § 6, adopted September 13, 1973; Ord. No. 22-82, §§ 2, 3, 9, adopted December 9, 1982; Ord. No. 23-90, § 2, adopted June 28, 1990; Ord. No. 46-96, § 1, adopted December 12, 1996; Ord. No. 27-99, §§ 1, 2, adopted August 12, 1999; and Ord. No. 2014-06, § 2, adopted July 24, 2014.
Editor's note— Section 45-31(K) entitled "Signs" was repealed by Ord. No. 13-72 enacted July 13, 1972. Sign regulations can be found in Chapter 6, Article V, of this Code.
Editor's note— Ord. No. 2020-06, § 16, adopted September 23, 2020, repealed § 45-31.1. Former § 45-31.1 pertained to C-B Commercial District and derived from Ord. No. 10-73, § 6, adopted September 13, 1973; Ord. No. 1-78, § 1, adopted February 9, 1978; Ord. No. 22-82, §§ 4, 5, 9, adopted December 9, 1982; Ord. No. 15-84, § 2, adopted July 12, 1984; Ord. No. 47-96, § 1, adopted December 12, 1996; Ord. No. 27-99, §§ 3, 4, adopted August 12, 1999; and Ord. No. 2014-06, § 2, adopted July 24, 2014.
Editor's note— Ord. No. 2020-06, § 17, adopted September 23, 2020, repealed § 45-32. Former § 45-32 pertained to C-1A Commercial District and derived from Ord. No. 10-72, § 2; Ord. No. 4-73; Ord. No. 10-73, § 7, adopted September 13, 1973; Ord. No. 14-74; Ord. No. 14-76, § 1, adopted July 8, 1976; Ord. No. 22-82, §§ 6, 7, 9, adopted December 9, 1982; Ord. No. 9-87, § 1, adopted May 28, 1987; Ord. No. 17-90, § 4, adopted June 28, 1990; Ord. No. 23-90, § 3, adopted June 28, 1990; Ord. No. 27-99, § 5, adopted August 12, 1999; Ord. No. 03-2001, §§ 1, 2, adopted February 8, 2001; Ord. No. 2006-06, § 1, adopted April 13, 2006; Ord. No. 2014-06, § 2, adopted July 24, 2014; and Ord. No. 2015-10, § 3, adopted June 11, 2015.
A.
General description. This residential/commercial transitional district is to provide for the development of low-intensity residential and business uses. The C-T district shall serve as a transition between strictly residential areas and intense commercial development.
B.
Uses permitted. The allowable uses in the C-T transitional commercial district are listed in Table 1 (in addition those specifically identified in the third column, uses not listed in the table are not permitted in the C-T district).
Table 1
1 Subject to the same requirements as apply in the R-2 zoning district.
C.
Conditions for permitted uses:
1.
All activities, sales and storage of goods must be conducted entirely within completely enclosed buildings with permanent nonmoving outside walls.
2.
No outside sidewalk of parking lot storage (or) display of merchandise will be permitted.
3.
No manufacturing or production of products for retail or wholesale will be permitted.
D.
Building height regulations. No building or structure shall exceed two (2) stories or twenty five (25) feet.
E.
Building site area regulations: Maximum floor-area-ratio: 0.70.
F.
Yards.
1.
Front yards.
(a)
All buildings shall be constructed from the Alternate A-I-A or Prosperity Farms Road right-of-way to provide a front yard of not less than twenty (20) feet.
(b)
All buildings shall be set back from the right-of-way of streets which intersect with Alternate A-I-A or Prosperity Farms Road providing a yard of not less than ten (10) feet.
(c)
The ground story of each building facade that faces a front yard must have at least 15% of its surface area in transparent glass that will transmit at least 50% of visible daylight.
2.
Side and rear yards. All buildings shall be set back from side and rear lot lines so as to provide side and rear yards of not less than:
(a)
Ten (10) feet when abutting a lot with residential zoning.
(b)
Zero (0) feet when abutting a lot with commercial or mixed-use zoning.
G.
Off-street parking regulations. Off-street parking shall be provided at half of the number of parking spaces required in:
1.
The C-S zoning district for commercial uses; and
2.
The R-2 zoning district for residential uses.
H.
Off-street parking layout, construction and maintenance shall be as provided in section 45-36.J.
I.
Landscape standards. Landscaping shall be required in the following areas as required by the village's landscaping requirements:
1.
Miscellaneous landscape elements, as required in section 45-88;
2.
Off-street parking lots, as required in section 45-89;
3.
Site perimeters, as required in section 45-90, except that no perimeter landscaping is required along a lot line that abuts commercial zoning; and
4.
Base of foundation, as required by section 45-91.
(Ord. No. 31-97, § 1(Exhibit A), 7-10-97; Ord. No. 23-99, § 1, 6-10-99; Ord. No. 15-2000, § 1, 5-25-00; Ord. No. 2020-06, § 18(Exh. 2), 9-24-20; Ord. No. 2025-10, § 2, 6-12-25)
Editor's note— Ord. No. 2020-06, § 18, adopted September 24, 2020, renamed § 45-32.1 from "C-C transitional commercial district" to "C-T transitional commercial district."
General description. This shopping district is established to provide that the principal use of land is devoted to community and neighborhood shopping and to tourism-related uses and to encourage the development of these locations for such uses and in such manner as to minimize congestion and interference with other land uses.
A.
Uses permitted. Within any C-S district, no building, structure, land or water shall be used, except for one (1) or more of the following uses:
1.
Reserved.
2.
Any retail business or commercial use including neighborhood commercial use that meets the daily living needs of village residents and which does not involve the manufacturing or processing of products; provided, however, automobile repair shops are not a permitted use except as an accessory use to an automotive service station or retail automobile tire store.
3.
Transient commercial uses serving either the motoring public or village residents including hotels and motels, conference and retreat facilities, filling stations, sale of convenience goods, and restaurants.
4.
Personal service establishments, including, but not limited to, banks, barbershops, bowling alleys, beauty salons, medical and dental clinics, professional and other offices, funeral homes, shoe repair shops, laundry pickup stations and self-service laundries, furniture display stores and drugstores.
5.
Mobile home park.
6.
Adult entertainment establishments.
7.
Religious worship or related religious activities.
8.
Limited access self-storage facilities are defined as a fully enclosed structure for indoor storage with a minimal amount of access points from the exterior of the building. These exterior access points provide access to interior hallways that directly serve individual storage units rented to the public. No direct access from the exterior of the building to an individual storage unit is permitted.
9.
Dog daycare, as defined and regulated in the I-1 zoning district.
10.
Restaurants and cocktail lounges.
11.
Nursery and private schools.
12.
Marinas and their accessory uses such as wet boat storage facilities, indoor dry boat storage facilities, gasoline supplies and such minor repair facilities as are incidental to boat storage and which do not involve major boat and/or engine overhaul.
13.
Multiple-family dwelling structures as a component of a commercial planned unit development containing a commercial component including retail and non-retail commercial facing a primary street frontage with a depth to be determined by the village council.
B.
Building height regulations. For buildings in excess of two (2) stories or thirty (30) feet in height, five (5) feet shall be added to the required front-yard setback for each story in excess of two (2) or in excess of thirty (30) feet in height. No structures however, shall occupy more than thirty-five (35) percent of the site area so required.
C.
Building and floor area regulations. An individual retail business or commercial use shall not exceed fifty thousand (50,000) square feet of floor area on the first floor; this provision shall not apply to grocery stores; food stores or facilities for use for religious worship or related religious uses including retreats, conferences, school or other educational uses, convent, rectory or other living facilities, administration or similar facilities owed or operated by religious groups or religious-related activities.
D.
Yard space regulations. There shall be a front yard of not less than fifty (50) feet measured from the street line to the front building line, except along both sides of U.S. 1, no setback less than one hundred (100) feet in depth measured from the front building line shall be provided.
For a distance of one (1) block on streets intersecting U.S. 1, measured from the right-of-way line of said U.S. 1, side yards of at least twenty-five (25) feet in depth shall be provided.
(a)
For single-family and for multiple-family residential structures, there shall be rear yard and side yard setbacks the same as set forth in the R-1 and R-3 zoning districts, respectively, except as modified below:
(i)
On corner lots intersecting U.S. Highway No. 1 where the front of the building is on the intersecting street and the side yard of the building is on U.S. Highway No. 1, the minimum side yard setback on U.S. Highway No. 1 shall be one hundred (100) feet measured from the street line to the side building line, and only for structures in excess of twenty (20) stories in height shall five (5) feet be added to the required side yard for each story added to the building in excess of twenty (20).
(ii)
On lots bordering the established bulkhead line, the Intracoastal Waterway line or any existing bulkhead, the maximum required rear yard and side yard setbacks shall be twenty (20) feet from the established bulkhead line, Intracoastal Waterway line or existing bulkhead, whichever is closest in distance to the building line; provided, however, that said bulkhead line, Intracoastal Waterway line or existing bulkhead is at least five hundred (500) feet from the opposite bulkhead line, Intracoastal Waterway line or existing bulkhead, whichever is closest.
All other space regulations shall apply to such buildings.
E.
Off-street parking regulations.
1.
Reserved.
2.
For general business, commercial or personal service establishments, one (1) space for each two hundred (200) square feet of nonstorage first floor area, plus one (1) space for each two hundred (200) square feet of nonstorage area above the first floor.
3.
Medical or dental offices or clinics, one (1) space for each one hundred fifty (150) square feet of floor area, up to three thousand (3,000) square feet; one (1) additional space for each additional two hundred (200) square feet of floor area up to five thousand (5,000) square feet; one (1) additional space for each additional two hundred fifty (250) square feet of floor space in excess of five thousand (5,000) square feet.
4.
Offices, one (1) space for each three hundred (300) square feet of floor area used for office purposes.
5.
Schools and public buildings, one (1) space for each four (4) seats in the main auditorium or place of assembly.
6.
Theaters, auditoriums, one (1) space for each four (4) seats.
7.
No parking shall be permitted in the first ten (10) feet of the required front yard depth, measured from the front property line. The restriction against parking in the first ten (10) feet of the required front yard depth measured from the front property line shall not apply to those properties which have complied in full with the landscaping provisions of this Code.
8.
Furniture display stores, one (1) space for each four hundred (400) square feet of sales area.
9.
Retail business with floor area in excess of fifty thousand (50,000) square feet, one (1) space for each two hundred fifty (250) square feet of non-storage floor area.
10.
Limited access self-storage facilities, one (1) space for each two hundred (200) storage units plus five (5) customer parking spaces.
11.
Marinas:
i)
One (1) space for every two (2) wet boat slips.
ii)
One (1) space for every six (6) dry boat slips.
12.
Motels and hotels, one (1) space for each guest bedroom, plus one (1) additional space for each five (5) employees.
13.
Churches, the same as for the R-2 multiple-family dwelling district.
14.
Restaurants, one (1) space for each seventy-five (75) square feet of floor area devoted to patron use, or one (1) space per three (3) fixed seats, whichever is the greater, and one (1) space for each one and one-half (1½) projected employees who would be actually working during peak employment hours.
F.
Floor area regulations.
1.
Reserved.
2.
In time-share structures, each dwelling unit having one (1) bedroom shall have a minimum floor area of seven hundred fifty (750) square feet. An additional one hundred fifty (150) square feet of floor area shall be required for each additional bedroom provided.
G.
Conditions for permitted uses:
1.
A car wash and car waxing business whether in conjunction with a filling station or as an independent enterprise shall be allowed to utilize an awning structure or structure which shall be located in the rear yard with a minimum five-foot setback and within the building side lines extended.
2.
All activities, sales and storage of goods must be conducted entirely within completely enclosed buildings with permanent nonmoving outside walls. The following exceptions apply:
i)
Restaurants that qualify under outdoor seating provisions of Appendix C—Zoning.
ii)
Marinas with enclosed new boat retail display area may utilize outdoor rear and side yard site area for ground level new boat storage, rigging, minor repair and display subject to the following conditions:
a.
Outdoor storage, rigging, minor repair and display areas shall be completely screened from the view of the street right-of-way and adjacent properties with an opaque wall or fence to a height of six (6) feet.
b.
The area of outdoor storage, rigging and display area shall not exceed the enclosed retail display floor area, including retail display area office space, or fifteen (15) percent of the total site area, whichever is less.
iii)
Outdoor runs/dog exercise areas which are accessory to veterinary clinics. All such outdoor runs/dog exercise areas shall comply with the requirements of Section 45-38.D.12.d of this Code.
3.
No outside sidewalk or parking lot storage or display of merchandise will be permitted.
4.
Limited access self-storage facilities shall only be allowed on properties within commercial planned unit developments and accompanied by the following conditions:
i)
All exterior service doors must be not visible from any public street or adjacent property.
ii)
All buildings must be a maximum of two (2) stories with architectural treatment to reflect the actual number of stories.
iii)
No blank walls shall be permitted.
iv)
A mix of uses must be provided that includes a minimum of ten (10) percent Gross Floor Area (GFA) retail or professional office (excluding the on-site management office for the self-storage facility).
v)
A minimum of one thousand (1,000) feet separation from property line to the closest adjacent property line shall be required between limited access self-storage facilities.
5.
All new marinas and major improvements to existing marinas shall provide sewage pump-out service to boats seven (7) meters (twenty-two and ninety-seven hundredths (22.97) feet) in length or more. Major improvements include adding wet or dry boat slips; constructing new buildings; adding or expanding fueling facilities, and other improvements of a comparable scale as determined by the community development
(Ord. No. 20-72, § 1; Ord. No. 4-73; Ord. No. 10-73, §§ 8, 9, 9-13-73; Ord. No. 22-82, §§ 8, 9, 12-9-82; Ord. No. 9-87, § 2, 5-28-87; Ord. No. 23-90, § 4, 6-28-90; Ord. No. 7-94, § 1, 4-14-94; Ord. No. 1-95, § 1, 1-12-95; Ord. No. 24-95, § 1, 7-17-95; Ord. No. 48-96, § 1, 12-12-96; Ord. No. 1-98, §§ 1—7, 1-8-98; Ord. No. 27-99, § 6, 8-12-99; Ord. No. 26-2002, §§ 1—3, 9-26-02; Ord. No. 2014-05, § 2, 6-26-14; Ord. No. 2020-06, § 19(Exh. 3), 9-24-20)
Editor's note— Ord. No. 2020-06, § 19, adopted September 24, 2020, renamed § 45-33 from "C-1 neighborhood commercial district" to "C-S shopping commercial district."
A.
Uses permitted. Within any C-G district, no building structure, land or water shall be used, except for one (1) or more of the following uses:
1.
Any use permitted in the C-S district.
2.
Any retail business or commercial use which does not involve the manufacturing or processing of products.
3.
Personal service establishments, including, but not limited to, banks, barbershops, bowling alleys, beauty salons, medical and dental clinics, professional and other offices, funeral homes, filling stations, shoe repair shops, laundry pickup stations and self service laundries, furniture display stores and drugstores.
4.
Full service automotive dealerships and accessory uses including paint and body shops, repair shops and garages, limousine service and towing service.
5.
Retail and wholesale sales of new vehicular parts, equipment and accessories without on-site installation.
6.
Automobile service shops such as full service vehicle repair shops, muffler shops, tire shops, lubrication and oil change, window tinting, wash and detailing.
7.
Automobile, truck and trailer rental business.
8.
Adult entertainment establishment.
9.
Limited Access Self Storage Facilities, which are defined as a fully enclosed structure for the purpose of indoor storage, with a minimal amount of access points from the exterior of the building. These exterior access points provide access to interior hallways that directly serve individual storage units rented to the public. No direct access from the exterior of the building to an individual storage unit is permitted.
B.
Development standards. Every commercial use located within the C-G district shall be so developed as to comply with the following performance standards:
1.
Outside display: Outside display areas for sale, lease or rental of vehicles shall be designed as follows:
(a)
Vehicles may be stored on an approved parking surface without reference to parking stalls, stall striping or wheel stops. This type of parking shall be allowed only pursuant to a site plan and appearance review and approval subject to Article III of Chapter 6 of the Village Code of Ordinances.
(b)
Interior landscaping requirements within outside display areas pursuant to Article VIII of this chapter shall be met by transferring the required landscaping to the perimeter of the site abutting public rights-of-way. The transferred landscaped areas shall be designed and located so as to mitigate and buffer the impact of the aggregated vehicle storage area.
2.
Locational and physical restrictions:
(a)
Repair facilities and paint and body shops shall be located at least one hundred (100) feet from any residentially-zoned lot. Service bay doors shall not be oriented toward any adjacent residentially-zoned property nor oriented toward any adjacent public street.
(b)
Accessory fuel pump islands and automated wash facilities for vehicles shall not be located within one hundred (100) feet of any residentially-zoned property. Wash facilities shall be located within a completely enclosed building. Fuel pump islands shall be located within an enclosed area so that they are not visible off premises.
(c)
The sale, lease or rental of automobiles, trucks, motorcycles, and recreational vehicles is allowed only on lots which meet the following minimum dimensions and area:
(1)
Minimum frontage of one hundred twenty five (125) feet.
(2)
Minimum width of one hundred twenty five (125) feet.
(3)
Minimum depth of two hundred (200) feet.
(4)
Minimum area of one and one-half (1.5) acres.
3.
Limited access self-storage facilities shall be accompanied by the following conditions:
(a)
All exterior service doors must not be visible from any public street or adjacent property.
(b)
The architectural treatment of all buildings must reflect the actual number of stories.
(c)
No blank walls shall be permitted.
(d)
A mix of uses must be provided that includes a minimum of ten percent (10%) Gross Floor Area (GFA) retail or professional office (excluding the on-site management office for the self-storage facility).
(e)
A minimum of one thousand (1,000) feet separation from property line to the closest adjacent property line shall be required between limited access self-storage facilities.
C.
Use and operating restrictions. Every commercial use located within the C-G district shall be so operated as to comply with the following performance standards:
1.
No industrial equipment or vehicles shall be sold, leased, rented or otherwise stored within the C-G district. For purposes herein, industrial equipment is defined as equipment used primarily for purposes other than transportation or hauling. Trucks other than pickup trucks, vans and jeeps shall be displayed in areas separated from a public right-of-way by a building.
2.
No vehicle shall be parked for display purposes with its hood or trunk open, nor elevated off the ground in any way. Vehicles shall not be parked in any right-of-way or driveway.
3.
Advertising, flags, pennants, streamers, balloons, signs or vehicle stock numbers shall not be displayed on any vehicle or equipment. Similar objects or advertising designed to attract the public's attention shall not be displayed outdoors on any lot, building, vehicle or equipment.
4.
Any areas designated for the off-loading of vehicles or for loading and deliveries shall be located to the rear of buildings and shall be located so as to contain noise on-site. These areas shall not be located closer than one hundred (100) feet from any residentially-zoned lot and shall be appropriately designated, marked and signed.
5.
Dealers are prohibited from using streets in a residential zone for the testing of vehicles after servicing and for the demonstration of vehicles.
6.
Exterior lighting fixtures shall not exceed twenty-five (25) feet in height; shall be directed away from adjacent properties; shall confine light to the site only; and shall not exceed when measured at any property line, the following illumination:
(a)
One hundred (100) foot-candles within display areas.
(b)
Forty (40) foot-candles within all areas.
(c)
After 11:00 p.m., the illumination in display areas shall be reduced to fifty (50) foot-candles.
7.
No outdoor speakers or public address systems that are audible from the exterior of the site shall be permitted.
8.
Customer parking shall be marked with an above grade sign and shall be physically separated from the vehicle sales, storage and display area. This barrier may be in the form of a landscape strip, curbing or removable bollards.
9.
The height of buildings, the site area of buildings, yard spaces, and floor area regulations in the C-G district shall be the same as required in the C-S district, with the following exception: Limited access self-storage facilities shall be limited to a maximum of three (3) stories in height.
10.
With the following exceptions, off-street parking regulations shall be the same as for the C-S district:
(a)
Full-service automotive dealerships, Customer and employee parking requirements; One (1) space for each five hundred (500) square feet enclosed floor area, plus one (1) space per each four thousand five hundred (4,500) square feet of outdoor sales display and rental area, plus one (1) space per service bay, plus one (1) space per employee of the shift of largest employment. Parking for vehicle storage, sales or display may not be counted toward meeting the number of required off-street parking spaces or to be provided for customers and employees.
(b)
Limited access self-storage facilities, one (1) space for each two hundred (200) storage units plus five (5) customer parking spaces.
(Ord. No. 32-97, § 1, 7-10-97; Ord. No. 18-98, § 1, 8-13-98; Ord. No. 14-2004, §§ 1—3, 7-8-04; Ord. No. 2020-06, § 20(Exh. 4), 9-24-20)
Editor's note— Ord. No. 2020-06, § 20, adopted September 24, 2020, renamed § 45-34 from "commercial district" to "C-G general commercial district."
The C-3 regional business district is designed for the re-use and/or redevelopment of commercial property. It contains special regulations and procedures that are integrated with those of the Town of Lake Park to avoid conflicts that could otherwise be created by the location of the town/village boundary. Within C-3 business districts, the following regulations shall apply:
(1)
Uses permitted. Table 1 indicates allowable uses in the C-3 regional business district:
Table 1 - Allowable Uses
1 See section 10 for additional PUD requirements
2 Subject to the same requirements as apply in the R-2 zoning district
(2)
Off-street parking. All proposed land uses shall provide a sufficient number of parking spaces to accommodate the number of vehicles that can be expected to be attracted to that use. Individual land uses can provide at least the number of spaces listed below on the same parcel of land as the principal building (or on an adjoining parcel under identical ownership) in lieu of using the parking space standards found elsewhere in this Code. However, certain land uses may require less parking; and combinations of land uses may be able to reduce the total number of spaces by sharing those spaces during differing peak hours or because of pedestrian traffic or multi-purpose trips. Modified standards may be approved if fewer spaces will accommodate the number of vehicles that can be expected to be attracted to that use (or combination of uses) at the proposed location. Such a modification may be made on individual parcels of land (or adjoining parcels under identical ownership) by the building official when permitted by consensus national codes or standards or after submission of persuasive technical evidence (such as publications of the Institute of Transportation Engineers (ITE)). Modifications that involve shared parking on parcels of land that are not under identical ownership, or parking in a different municipality than the principal building regardless of ownership, may be approved through the special C-3 PUD procedures found below in section 45-34.1(10).
a.
Auditoriums of any kind — One (1) space per three (3) seats.
b.
Banks and other financial institutions — Three (3) spaces per one thousand (1,000) square feet.
c.
Hotels and motels — One (1) space per guest room plus one (1) space per two (2) employees during the peak period; parking for restaurants and other guest facilities to be calculated separately.
d.
Offices, medical/dental — Five (5) spaces per one thousand (1,000) square feet.
e.
Offices, all other — Three (3) spaces per one thousand (1,000) square feet.
f.
Residential — Two (2) spaces per dwelling unit.
g.
Restaurants and nightclubs — Twelve (12) spaces per one thousand (1,000) square feet, except six (6) spaces per one thousand (1,000) square feet for restaurants offering take-out service.
h.
Retail uses and personal services — Four (4) spaces per one thousand (1,000) square feet, except one and one-half (1.5) spaces per one thousand (1,000) square feet for furniture sales.
i.
Shopping centers — Four (4) spaces per one thousand (1,000) square feet.
j.
Uses not listed above to be determined by the building official using standards found elsewhere in this Code or upon submission of persuasive technical evidence about the number of vehicles that can be expected to be attracted.
NOTES:
1.
All areas are measured as gross floor area except multi-tenant shopping centers and office complexes, which are measured as gross leasable area.
2.
Fractional spaces can be disregarded.
3.
Wherever the term "identical ownership" is used, the land parcels in question must be contiguous and must be owned by or under the unified control of the applicant.
(3)
Off-street loading and internal circulation. Requirements for off-street loading, parking lot aisles, accessways, and general internal circulation shall be same as would apply in the C-S zoning district.
a.
Lighting: Parking lots shall be fully illuminated during hours of business operation with a minimum standard of illumination from closing to dawn per the Palm Beach County Code or ITE, whichever is more stringent.
(4)
Landscaping. Landscaping shall be required along the outer boundary of the C-3 zoning district (irrespective of any municipal boundary) and also in unroofed parking areas whenever a parking area is constructed, reconstructed, or reconfigured. In addition to the other provisions of chapter 27 of this Code, the following landscaping requirements shall be met:
a.
Required landscaping adjacent to public rights-of-way: The required landscaped strip between a public right-of-way and an off-street parking area shall be at least fifteen (15) feet wide and shall contain at least five (5) shade trees and eighteen (18) shrubs for each one hundred (100) lineal feet.
b.
Parking area interior landscaping for unroofed parking areas: At least ten (10) percent of the total paved surface area shall be devoted to landscaped areas. Each area counting toward the ten (10) percent total shall have an average minimum dimension of ten (10) square feet. At least one (1) shade tree shall be planted for every two hundred fifty (250) square feet of required internal planting area. No parking space shall be more than one hundred (100) feet from a shade tree planted in a permeable island, peninsula, or median having a ten-foot minimum width.
c.
Indigenous native vegetation: To reduce maintenance and water consumption, required landscaping shall include at least seventy-five (75) percent indigenous native trees and fifty (50) percent indigenous native shrubs.
d.
Installation: All required landscaping shall be installed using xeriscape principles including water conservation through the appropriate use of drought-tolerant plants, mulching, and the reduction of turn areas. Irrigation systems shall be designed to operate only when needed and only in those areas that require irrigation.
e.
Maintenance: The property owner shall be responsible for the maintenance of all required landscaped areas in a healthy and vigorous condition at all times. Required trees shall not be trimmed or pruned in such a way as to alter or limit their normal mature height or crown spread. If required plants die, they shall be replaced within sixty (60) days.
(5)
Setbacks and height. The following setback, height, and spacing regulations apply in the C-3 zoning district:
a.
Perimeter setbacks: All buildings and structures shall be set back a minimum of thirty (30) feet from the outer boundary of the C-3 zoning district, except an interior common municipal boundary. For buildings in excess of two (2) stories or thirty (30) feet in height, one (1) foot shall be added to the required perimeter setback for each extra foot of height over thirty (30) feet.
b.
Additional setbacks to internal property lines: The need for building setbacks to property lines adjoining other land zoned C-3 is related to the existing or proposed uses of those properties. Unless modified through the special C-3 PUD procedures found below in section 45-34.1(10), all new buildings and structures shall be set back a minimum of twenty-five (25) feet from each of its property lines.
c.
Maximum building height: The maximum height of any building shall be fifty (50) feet.
d.
Spacing between buildings: The minimum spacing between individual buildings on the same or adjoining C-3 properties shall be as required by applicable fire and building codes.
(6)
Maximum lot coverage. There is no fixed cap on lot coverage or floor area ratio. Maximum intensity will be governed by the application of the parking, loading, setback, building height, and surface water management standards found herein.
(7)
Signs. In addition to the other provisions of sections 6-111 through 6-117 of this Code, but notwithstanding any conflicting standards found therein, signs in the C-3 zoning district shall comply with the following regulations unless modified through the special C-3 PUD procedures.
a.
Ground signs are mounted on a monolithic base and are independent of any building for support. They are permitted only when the sign and base are monolithic and have essentially the same contour from grade to top. Ground signs that meet the following regulations are permitted in the C-3 district only along U.S. Route 1 and Northlake Boulevard:
1.
Maximum number of ground signs: One (1) ground sign along U.S. Route 1 and one (1) ground sign along Northlake Boulevard, regardless of jurisdiction, North Palm Beach or Lake Park.
2.
Maximum height of ground sign base: Three (3) feet.
3.
Maximum height of ground signs: Thirteen (13) feet including the base, measured from the finished grade nearest the base (excluding berms).
4.
Maximum size of ground signs: One hundred (100) square feet; copy may be placed on two (2) sides of a ground sign without counting the area twice.
b.
Pole signs are not attached to any building and are supported upon the ground by poles or braces. Pole signs are not permitted in the C-3 district.
c.
Wall signs are those that are attached to the exterior of a building or structure in such a manner that the wall becomes the supporting structure, and may form the background surface, of the sign. Wall signs are permitted in the C-3 district provided they meet the following regulations:
1.
Maximum depth of wall signs: Wall signs may not be painted directly on the wall and may not project more than two (2) feet from the building to which they are fastened.
2.
Allowable slope of wall signs: Wall signs may not be attached to walls that slope more than forty-five (45) degrees from a vertical plane.
3.
Maximum height of wall signs: Eighteen (18) feet measured from the finished grade nearest the wall, except that on a building of more than two (2) stories, a single wall sign is allowed above eighteen (18) feet. No wall sign may extend above the top of the wall to which it is attached.
4.
Maximum number of wall signs: One (1) permanent wall sign is permitted for each business which has direct ground level walk-in access from a public or private roadway or sidewalk, and one (1) additional permanent wall sign identifying the building is permitted for each multiple occupancy complex.
5.
Maximum size of wall signs: Five (5) percent of the area of the wall to which it is attached; or seven (7) percent if the front building setback is greater than seventy (70) feet; or ten (10) percent if the front building setback is greater than one hundred (100) feet. However, in no case shall a wall sign exceed one hundred (100) square feet in size.
d.
Roof signs are erected and constructed wholly on and over the roof of a building, and are supported by the roof structure or are an integral part of the roof. Roof signs are not permitted in the C-3 district.
e.
Size computations: When these regulations establish the maximum size of a sign, it shall be computed by means of the smallest square, circle, rectangle, triangle, or combination thereof that will encompass the extreme limits of the writing, representation, emblem, or other display, together with any material or color forming an integral part of the background of the display or used to differentiate the sign any backdrop or structure against which it is placed.
f.
Allowable colors: Notwithstanding the regulations in chapter 6 of this Code, color tones utilized for all signs complying with these regulations shall be compatible with surrounding area.
g.
Lighting: Signs containing illumination shall be turned off by 12:00 a.m. (midnight) each night, or when the business closes, whichever is later.
h.
Appeals: Notwithstanding conflicting appeal procedures found elsewhere in this Code, all requests for modifications to sign regulations in the C-3 zoning district shall be made through the special C-3 PUD procedures found below in 45-34.1(10).
(8)
Surface water management. A complete surface water management system shall be provided to current standards of the South Florida Water Management District whenever a building or parking area is substantially redeveloped.
(9)
Location of business for retail sales of alcoholic beverages.
a.
No licensed retail sales of alcoholic beverages shall be carried on where the proposed place of business is within five hundred (500) feet of a church, synagogue, temple or other place of worship.
b.
The method of measurement provided for above shall be made or taken from the main front entrance of such church to the main front entrance of the applicants proposed place of business along the route of ordinary pedestrian traffic.
c.
The restrictions of section 45-34.1(9), (1)[a.] shall not apply to the retail sale of beer, ale or wine for off-premises consumption.
d.
The restrictions of section 45-34.1(9), (1)[a.] shall not apply to any bona fide restaurant as defined and licensed under Florida Statutes as a restaurant with full kitchen facilities, regardless of size or seating capacity, where alcoholic beverages are served solely as an accessory use to the restaurant and only when such restaurant is open for the sale and service of food.
(10)
Special C-3 planned unit development (PUD) provisions. It is the intention of the village to provide a mechanism and process to promote the redevelopment of the obsolete and underutilized areas of the C-3 zoning district with large-scale, master-planned projects that promote: a mix of uses; connectivity; pedestrian-oriented development; removal of surface parking; creation of public/civic gathering spaces; and shopping, entertainment, and restaurant uses within the form of an urban neighborhood incorporating residential development as an integral use. These projects promote the economic and redevelopment goals of the village, and the village has created these planned unit development (PUD) provisions to facilitate these goals. The development regulations applicable within the PUD are not permitted or allowed by right and shall only apply if the village council determines that each of the threshold criteria is met. Properties located in the C-3 zoning district that do not meet the threshold criteria set forth below may utilize the general PUD provisions of section 45-35.1 of this code as set forth in section 45-35.1(D). Properties located in the C-3 zoning district that do meet each of the threshold criteria below may, at the option of the property owner, utilize the following special PUD regulations:
a.
The threshold criteria for use of these special provisions are as follows:
1.
The development parcel includes a minimum of at least five (5) contiguous acres of land that will be initially reviewed and approved as one (1) overall development project. Any subsequent amendments to such plan or individual phases of such plan shall also be subject to these special provisions.
2.
The project provides a minimum of one-half (½) acre for a civic space within the project site. "Civic space" shall be defined as an open space that is dedicated for public use including all adjacent pedestrian amenities. The civic space may include, parks, plazas, courtyards, playgrounds, or similar uses. The civic space may be owned, maintained and/or operated either publicly or privately. The civic space may be reconfigured or relocated from the orientation shown on the regulating plan. Civic space provided pursuant to this subsection shall be credited towards the public sites and open spaces requirements of section 36-23 of this Code.
3.
To achieve a mixed-use project, a minimum of fifty thousand (50,000) square feet of the total project development shall be allocated to non-residential uses.
4.
The project provides additional public benefits in the form of enhanced landscaping over and above code requirements; enhanced pedestrian amenities (such as awnings canopies, outdoor art, or seating areas); the creation of functional living, shopping and/or working environments; or innovative architectural design. The village council reserves the right to approve alternate public benefits.
b.
Allowable changes to existing regulations: No PUD approval can permit any development that is inconsistent with the comprehensive plan. Subject to this limitation, the village council may grant waivers to the applicable regulations set forth in this section and as otherwise provided in this chapter subject to the following:
1.
A waiver request in the C-3 zoning district cannot be used to:
i.
Add uses that are not allowable under this Code;
ii.
Increase the allowable floor area ratio; or
iii.
Increase the allowable building height.
2.
When evaluating waiver requests, the village will consider the following factors and any additional criteria set forth in the relevant zoning district:
i.
The extent to which the alternate standard proposed by the applicant differs from the code's standard that would be waived;
ii.
Whether the granting of the waiver will lead to innovative design in which other minimum standards are exceeded;
iii.
Whether the request clearly demonstrates sufficient public benefits;
iv.
Whether the request furthers the goals of the village master plan, and exemplifies the architectural, building, and site design techniques desired within the village's appearance plan;
v.
Whether the requested waiver can be granted in the zoning district;
vi.
Any unusual circumstances regarding the property or immediate area, including the location of power lines, specimen trees, or shade trees; and
vii.
The effect of approving or denying the waiver on the development project and on the surrounding area.
c.
Unified control: All parcels submitted in a single PUD application must be contiguous and must be owned by or be under the unified control of the applicant. All common areas shall be subject to joint maintenance by all of the property owners within the PUD, and the unified control documents shall provide for reciprocal easements over all streets, driveways, parking areas, pedestrian areas and civic space in favor of all properties within the PUD. While the village shall always treat the PUD as one (1) project, portions of the PUD may be conveyed to third parties by metes and bounds once the unified control documents have been approved by the village attorney and recorded in the county public records.
d.
Application procedures: PUD applications made under this section shall be accompanied by the applicable fee and shall contain the following:
1.
Satisfactory evidence of unified control of the entire area within the proposed PUD; agreement to abide by the conditions of approval, if granted; and ability to bind successors in title to these conditions if the proposed development is built.
2.
A proposed master site development plan in sufficient detail to show the approximate locations of buildings, parking areas, and stormwater management facilities. This plan shall also show the exact locations of all access points to public streets and to any abutting land zoned C-3, whether in Lake Park or North Palm Beach. The master plan shall also include intensity of each use, maximum floor area ratio (FAR), and building heights. The master plan may include phased development.
3.
An application and justification statement describing the proposed land uses, identifying requested waivers, demonstrating compliance with all code requirements, and setting for any volunteered limited conditions furthering the intent of the C-3 zoning district.
4.
Vehicular circulation plan and traffic impact study completed by a certified transportation engineer.
5.
Conceptual drainage plan and statement prepared by a certified civil engineer.
6.
Conceptual landscape design completed by a registered landscape architect.
7.
Preliminary plat.
8.
Conceptual architecture elevations and/or renderings and any other information requested by the community development director.
e.
Approval process: PUD applications under this section shall be forwarded along with recommendations from staff to the planning commission, which after holding a public hearing shall make a formal recommendation to the village council. The village council shall also hold a public hearing to take final action on the application. The applicant may then proceed to obtain final site plan and appearance approval for specific phases of the project (if applicable) as indicated in the approved master plan.
f.
Application review procedure: Regardless of the final governing body approving the project, joint municipal staff review and a joint meeting of the North Palm Beach planning commission and the Lake Park planning and zoning board shall be required for approval. Both municipalities shall review the master plan and subsequent site plan and appearance approvals, unless otherwise provided for as part of the master plan approval process. For projects proposed within the jurisdictional boundaries of both Lake Park and North Palm Beach, the project shall be reviewed in accordance with the governing standards of whichever jurisdiction contains eighty (80) percent or more of the project area. The governing body of the same jurisdiction, instead of both governing bodies, shall make final approval, with recommendations from both advisory planning boards.
g.
Regulating Plan. Figure 1, Regulating Plan, identifies the properties, frontage types and street locations for properties developing under the special PUD regulations.
Figure 1 - Regulating Plan
h.
Building frontage types.
1.
Setbacks. The following setbacks shall apply to development parcels approved through the site and appearance review process:
i.
Perimeter setbacks: All buildings fronting public rights-of-way shall meet the front setbacks as indicated in the regulating plan and further described in Table 2.
ii.
Additional setbacks to internal property lines, parcel lines or private internal streets, drives or alleys: All internal buildings shall meet the building frontages as indicated on the regulating plan and described in Table 2.
iii.
Spacing between buildings: The minimum spacing between individual buildings on the same property, same parcel or adjoining C-3 properties shall be determined by applicable fire and building codes.
Table 2 - Building Frontage Types
The following frontage configurations shall be used within the properties designated on the regulating plan. See Figure 1 for permitted frontage locations.
Frontage A1
Frontage A2
Frontage B
Frontage C
Frontage D
i.
Building frontage percentage: The building frontage percentage is calculated by dividing the width of the building by the width of the lot along the same street frontage. All buildings shall have a minimum frontage of seventy (70) percent for internal streets and eighty (80) percent along Palmetto Drive, U.S. Highway One and Northlake Boulevard.
j.
Development Intensities: Master site development plans proposed through this process, and meeting the minimum development thresholds, shall have a maximum floor area ratio (FAR) of 2.75. The FAR is calculated by the total gross area of the property, including existing and proposed easements and proposed public and private streets and alleys multiplied by the FAR. The maximum building area is limited by the maximum allowable FAR. "Building area" means the total air-conditioned leasable or saleable floor area of a building, including hallways, stairs, elevators and storage spaces. The building area does not include: non-habitable enclosed areas on the rooftop; external unenclosed circulation areas; parking areas and parking garages; unenclosed colonnades, porches and balconies; and un-air-conditioned storage spaces.
k.
Building height.
1.
Buildings meeting each of the criteria of these special PUD provisions set forth in subsection (10)(a) are subject to the following height restrictions:
a.
For master site development plans of at least five (5) acres and with at least fifty thousand (50,000) square feet of non-residential uses, buildings may have up to six (6) stories and a maximum height of seventy-five (75) feet, not including roof-top amenities;
b.
For master site development plans of at least seven and one-half (7½) acres and with at least seventy thousand (70,000) square feet of non-residential uses, buildings may have up to ten (10) stories and a maximum of one hundred and twenty-five (125) feet, not including roof-top amenities; and
c.
For master site development plans of at least ten (10) acres and with at least ninety thousand (90,000) square feet of non-residential uses, buildings may have up to fourteen (14) stories and a maximum height of one hundred seventy-five (175) feet, not including roof-top amenities.
In no event shall buildings fronting U.S. Highway One, Northlake Boulevard and Palmetto Drive exceed nine (9) stories or one hundred twenty (120) feet in height within fifty (50) feet of the right-of-way.
2.
For the purposes of calculating the number of stories in a building, stories shall be defined as the space between the finished floor and the top of the structural slab and adjusted as follows:
a.
Each level devoted to parking is considered as an individual story when calculating the number of stories in a building, except where parking levels are screened by a liner building that is a minimum of twenty (20) feet deep and at least two (2) stories tall or an enhanced and aesthetically pleasing architectural feature that screens the parking.
b.
When parking levels are constructed on a slope or are connected by sloping or circular ramps, the number of stories will be based on the non-sloped areas. If there are no non-sloped areas, the number of stories will be counted as the highest parking level plus each parking level below.
c.
A mezzanine will not count towards the number of stories provided the total area of the mezzanine level is less than forty (40) percent of the floor area of the main story below.
d.
Rooftop amenities shall not count as a story so long as no more than forty (40) percent of the rooftop shall be fully enclosed, air-conditioned space. None of the rooftop space is habitable for residential purposes.
l.
Floor to floor heights: Development may use the following standards for the elevation of ground-floors and minimum/ maximum dimensions for floor heights. These standards are measured as follows in Table 3.
Table 3 - Floor to Floor Standards
Exceptions: The maximum floor to floor height standards in Table 3 do not apply in the following circumstances:
1.
A story in or under a building that is devoted to parking is counted as a story when calculating the number of stories in a building, but does not need to comply with the maximum floor to floor heights in Table 3.
2.
When the total area of mezzanine level is less than forty (40) percent of the floor area of the story below, the mezzanine level does not need to comply with the maximum floor to floor heights in Table 3.
3.
Any story that exceeds the height limitation of Table 3 will count as an additional story.
m.
Architectural features:
1.
Main entrances:
i.
The main entrance for all buildings in these special provisions is its principal point of access for pedestrians. Main entrances must face a street, alley, or civic space.
ii.
Buildings fronting on two (2) streets may have a pedestrian entrance on both streets.
2.
Facade transparency:
i.
Transparency means the amount of transparent window glass or other openings in a building's façade along a street frontage. The transparency ratio requirement is expressed as the percentage of the transparent area divided by the entire façade area. It is calculated separately for the ground story of a façade and all upper story floors above the first floor.
ii.
A minimum of sixty (60) percent transparency shall be provided for all ground floor non-residential building frontage and all non-residential uses above the ground floor, with the exception of garage structures and floors above the ground floor that are part of a parking structure which are exempt from this requirement.
iii.
Glazed windows and doors with tinted glass or applied films will be considered transparent if they transmit at least fifty (50) percent of visible daylight.
iv.
The transparent area of windows and doors include rails and stiles as well as muntin bars and other separators within primarily glazed areas; however, the transparent area excludes outer solid areas such as jambs, sills and trim.
n.
Street and sidewalk standards:
1.
Streets and blocks are indicated on the regulating plan, Figure 1. Final development plans may deviate from the alignment of those streets provided the modification provides equivalent functionality to intersections with U.S. Highway One and roads within the Town of Lake Park. Modifications shall be requested through the PUD application process.
2.
Streets shall be designed in accordance with Figure 2 and shall be built concurrently with the development or a phasing plan approved by the village.
3.
To encourage pedestrian circulation, minor streets may be designed primarily for pedestrian use with the ability to accommodate service and emergency vehicles when required.
4.
All streets within the C-3 zoning district shall be owned and maintained privately unless otherwise approved by the village.
5.
Alleys may be proposed between streets shown on the regulating plan.
6.
Sidewalks adjacent to the U.S. Highway One and Northlake Boulevard rights-of-way shall be a minimum of eight (8) feet in width. All other sidewalks shall be a minimum of six (6) feet in width.
7.
One-way streets shall only be permitted adjacent to a civic space, following the lane width, parking and planter dimensions shown in Figure 2. All one-way streets shall be in addition to the proposed streets shown on the regulating plan. A traffic circulation plan shall be included with the master plan application to ensure anticipated connections are maintained.
Figure 2
o.
Landscape standards. All landscaping shall meet the requirements of the Article VIII (Landscaping) of this chapter unless a waiver is requested through the PUD process.
p.
Parking standards. Parking shall meet the requirements of this subsection. Dimensions and specifications for parking shall meet section 45-36.J of this Code.
1.
Parking space ratios: Table 4 provides parking space ratios for various uses on a site within the PUD. These ratios establish the minimum number of on-site parking spaces. Ratios based on square feet refer to the gross floor area.
Table 4 - Parking Space Ratios
2.
Parking space adjustments. The number of on-site parking spaces calculated in accordance with Table 4 shall be adjusted under any one (1) or more of the following circumstances:
i.
Mixed-use developments qualify for the shared-parking percentage reductions specified in Table 5 provided the development includes at least ten (10) percent of its gross floor area in a second category of Figure 4 (residential, lodging, office, business, and civic/education uses).
ii.
Required spaces may be located up to five hundred (500) feet off-site in a dedicated or joint-use parking lot provided that permission to use those spaces is specified in a binding agreement that is reviewed and approved during the site plan and appearance review process.
iii.
Golf cart parking spaces may be provided with minimum dimensions of five (5) feet wide by ten (10) feet long. However, none of the development's required parking spaces may be met by golf cart parking spaces.
Table 5 - Shared Parking Reductions
3.
A deferred parking plan may be approved by the village if a parking study is provided that demonstrates the need for parking is less than what is required by code, or the owner has demonstrated that an alternative means of access to the uses on the site justifies the deferral of the construction of a portion of the required parking spaces. The deferred parking plan shall:
i.
Be designed to contain sufficient space to meet the full parking requirements of the code. The plan shall illustrate the layout for the full number of parking spaces, and shall designate which parking spaces are to be deferred and the timetable for construction.
ii.
Be designed so that the deferred parking spaces are not located in areas required for landscaping, buffer zones, or areas that would otherwise be unsuitable for parking spaces because of the physical characteristics of the land or other requirements of this code.
4.
Physical standards for parking lots, driveways, and loading: Physical standards for outdoor parking lots, driveways and loading are contained herein or as modified by a request through the PUD process. No parking shall be located within the building frontage setback.
5.
Standards for parking garages: Parking spaces may be provided under or in buildings or in dedicated parking garages instead of being provided in uncovered surface parking lots. Such parking spaces need not comply with the minimum setbacks for surface parking lots. These parking spaces must be screened from view from all streets. Screening may be provided by rooms in the same building or with a liner building that is at least two (2) stories tall with space at least twenty (20) feet deep or an enhanced and aesthetically-pleasing architectural feature screening the same two (2) stories.
q.
Sign standards: All projects shall provide a sign plan that shall be reviewed and approved by the village during site plan and appearance approval. Pedestrian oriented signs are strongly encouraged and no ground signs shall be permitted as part of the PUD.
r.
Lighting standards: A photometric plan shall be provided during site plan and appearance review. The plan shall include all luminaire specifications, pole locations, and foot-candle levels on directly adjacent properties. Light trespass shall be limited to the largest extent possible.
(Ord. No. 8-95, § 1(Exh. A), 3-23-95; Ord. No. 18-95, §§ 1, 2, 7-13-95; Ord. No. 1-96, § 1, 1-11-96; Ord. No. 35-96, § 1, 8-22-96; Ord. No. 1-97, § 1, 1-9-97; Ord. No. 2023-06, § 2, 7-13-23)
Within any P public district, uses shall be restricted to those necessary or essential to the administration and operation of the village or any other governmental agency, including, but not limited, to village hall, recreation facilities, waterworks, pumping stations and sewage facilities.
(Ord. No. 3-82, § 1, 1-28-82)
I.
Statement of intent.
A.
The intent of this section is to provide, in the case of a commercial planned unit development consisting of one or more acres, in the case of an industrial planned unit development consisting of one or more acres, and in the case of a residential planned unit development, an added degree of flexibility in the placement and interrelationship of the buildings and uses within the planned unit development, together with the implementation of new design concepts. At the same time the intensity of land use, density of population and amounts of light, air, access and required open space will be maintained for the zoning district in which the proposed project is to be located, except as may be permitted for key redevelopment sites through subsection 45-35.1.VIII. Nothing herein should be construed as allowing deviation for uses other than those specified as permitted uses, nor any greater intensity of use or density of population nor any less required open space than that which is specified in this chapter for the zoning district in which a proposed project is located, except as may be permitted through subsection 45-35.1.VIII.
B.
Subject to the foregoing statement of intent, the village council may, in the case of commercial, industrial and residential planned unit developments, allow for minor modification of the provisions of this chapter or other land development regulations in accordance with the procedure set forth in subsections II, III, IV and V.
C.
The planned unit development procedures in section 45-35.1 may not be used in the following zoning districts which provide a different process for considering minor modifications:
1.
C-MU the C-MU zoning district allows waivers (see the C-MU zoning district and section 45-51).
2.
C-NB the C-NB zoning district allows waivers (see the C-NB zoning district and section 45-51).
D.
The planned unit development procedures in section 45-35.1 may be used in the C-3 zoning district where the property does not meet the threshold criteria for use of the special planned unit development procedure set forth in section 45-34.1(10) of this code. The minimum size requirement set forth in subsection A above shall not be applicable to such planned unit developments within the C-3 zoning district.
II.
Filing of application.
A.
Any person may file an application with the village council for minor modifications of the provisions of this chapter. This application shall contain at least the following:
1.
All application and review procedures shall comply with section 45-49, Application for rezoning, of this Code.
2.
A statement listing and fully explaining the specific modifications of the provisions of this chapter 45 which are desired, as well as the purposes for which the modifications are intended.
3.
All application procedures for residential planned unit developments shall be as required by the subdivision provisions of this Code.
4.
Compliance with the village comprehensive plan is required.
5.
Land covered by the development plan shall be platted concurrently with final approval of the development plan.
6.
The fee for filing an application for a planned unit development shall be established in the master fee scheduled adopted annually as part of the village budget.
7.
The final approved development plan shall include the plat drawings and necessary submittals demonstrating acceptability of all factors and standards evaluated in subsection IV(A).
8.
All dwelling unit sizes, parking criteria and building site coverage must meet the requirements of the zoning code for each type of proposed use, except at follows:
Exception A: applicants for assisted living facilities may, when accompanied by a justification statement, apply for relief from the off-street parking and minimum dwelling unit size requirements.
Exception B: applications submitted through subsection 45-35.1.VIII for key redevelopment sites may, when accompanied by a justification statement, apply for relief from off-street parking and minimum dwelling unit size requirements. Building site coverage requirements do not apply.
Exception C: applications for commercial or mixed-use development may, when accompanied by a justification statement, apply for relief from the off-street parking requirements.
9.
All land included for the purpose of development within a planned unit development shall be owned or under the unified control of the applicant for such zoning designation, whether the applicant is an individual, partnership, corporation, trust or group of individuals, partnerships, trusts or corporations. The applicant shall present satisfactory evidence of the unified control of the entire area by applicant within the proposed planned unit development and shall state agreement that, if he proceeds with the proposed development, he will:
a.
Do so in accordance with the officially approved development plan and such other conditions or modifications as may be attached to the special exception.
b.
Provide agreements, covenants, contracts, deed restrictions or sureties acceptable to the village council, both for completion of the undertaking in accordance with the adopted development plan, and also for the continuing operation and maintenance of areas, functions and facilities which the plan shows are not to be operated or maintained at general public expense. Such documents must be in a form acceptable to the Village Attorney.
c.
Bind his development successors in title to any commitments made under subsections a. and b., preceding.
10.
Any tract of land for which a planned unit development is made shall contain sufficient width, depth and frontage on a public dedicated arterial or major street or appropriate access which will accommodate the proposed use and design.
11.
In the event any building or structure built under this section is destroyed or removed by or for any cause, said building or structure, if replaced, shall be replaced with a building or structure of similar size and type not exceeding the dimensions of the original building or structure. The developer shall include the appropriate deed restrictions and/or covenants so as to require replacement as outlined above.
III.
Referral to planning commission. The village council shall refer each application for a planned unit development to the planning commission for study and recommendation.
IV.
Action of planning commission.
A.
After a study of an application for a planned unit development and the required public hearing, the planning commission shall make a recommendation to the village council to approve, approve as modified, or reject the application based upon the following standards:
1.
The proposed use or uses shall be of such location, size and character as to be in harmony with the appropriate and orderly development of the zoning district in which situated and shall not be detrimental to the orderly development of adjacent zoning districts.
2.
The location and size of the proposed use or uses, the nature and intensity of the principal use and all accessory uses, the site layout and its relation to streets giving access to it, shall be such that traffic to and from the use or uses, and the assembly of persons in connection therewith, will not be hazardous or inconvenient to the neighborhood nor conflict with the normal traffic of the neighborhood. In applying this standard, the commission shall consider, among other things: convenient routes for pedestrian traffic, particularly of children; the relationship of the proposed project to main traffic thoroughfares and to street and road intersections; and, the general character and intensity of the existing and potential development of the neighborhood. In addition, where appropriate, the commission shall determine that noise, vibration, odor, light, glare, heat, electromagnetic or radioactive radiation, or other external effects, from any source whatsoever which is connected with the proposed use, will not have a detrimental effect upon neighboring property or the neighboring area in general.
3.
The location and height of buildings, the location, nature and height of walls and fences, and the nature and extent of landscaping of the site shall be such that they will not hinder or discourage the proper development and use of adjacent land and buildings nor impair the value thereof.
4.
The standards of density and required open space in the proposed project are at least equal to those required by this ordinance in the zoning district in which the proposed project is to be located, except as may be permitted for key redevelopment sites through subsection 45-35.1.VIII.
5.
There shall be no uses within the proposed project which are not permitted uses in the zoning district in which the proposed project is to be located.
Exception: Mixed uses may be allowed if the existing zoning district usage is commercial. The mixed uses shall only be residential and mercantile or residential and business.
B.
The commission may recommend such changes or modifications in the proposed plan as are needed to achieve conformity to the standards as herein specified. The reasons for the changes or modifications shall be included in the recommendation.
C.
The commission shall not recommend the project unless it finds that all of the standards as herein specified have been met. If there are minor modifications to the provisions of this chapter, the commission may recommend its approval at the same time. It shall also, where it deems appropriate and necessary, recommend to the village council those conditions to be imposed upon the project, its operation, or both, that are needed to assure adherence to the aforesaid standards.
V.
Action of village council. The village council, upon the receipt from the planning commission of the report on the planned unit development and the minor modifications to the provisions of this chapter may, after the required public hearing, approve or reject such project and modifications, incorporating with an approval such conditions as the council deems appropriate. The approval shall be by ordinance.
VI.
Effect of approval of village council. The approval of the application by the village council shall allow the building official to issue a building permit in conformity with the application as approved. This permit shall specify with particularity the exact modifications to the provisions of this chapter which have been approved by the village council. The holder of this permit may then proceed with his project in conformity with said permit. No deviations from the conditions of the permit shall be allowed except those which shall be in conformity with the basic provisions of this ordinance as they apply to the zoning district in which the project is located. The community development director may adjust a modification to the provisions of this chapter only if the adjustment had been authorized by conditions that the Village Council placed on the planned unit development approval.
VII.
Public notice. Public notice of all hearings conducted in accordance with this section shall be provided as required by section 21-3 of the village Code.
VIII.
Key redevelopment sites. The village has identified key sites in need of redevelopment and encourages the use of this Planned Unit Development process to redevelop those sites in accordance with design concepts developed or endorsed by the village. Minor modifications to the provisions of this chapter or other land development regulations may be requested through the Planned Unit Development process for these sites. The following additional standards apply during this process:
1.
Regulating plans. Eligible sites are depicted on regulating plans in Figures 45-35.1-A-1, 45-35.1-B-1, and 45-35-1-C-1.
2.
Illustrative plans. Renderings or illustrative plans may be provided in this subsection to show hypothetical buildings on eligible sites using these standards. See Figures 45-35.1-A-2, 45-35.1-B-2, and 45-35.1-C-2.
3.
Build-to zone. Where build-to zones are shown on the regulating plan, the build-to zone is zero (0) feet minimum and twenty (20) feet maximum using the methodology in the C-MU zoning district (unless different distances are specified on the regulating plan). Build-to zones supersede setback requirements in the underlying zoning district.
4.
Floor-to-area ratio. The Comprehensive Plan establishes caps on the ratio of floor area to lot area for most land in the village; however, those caps do not apply to these key redevelopment sites.
5.
Building frontage standards. Where build-to zones are shown on the regulating plan, building frontages must be at least 60% of the lot width, measured using the methodology in the C-MU zoning district (unless a different percentage is specified on the regulating plan).
6.
Building height. Buildings may be up to four (4) stories tall. For the purpose of calculating the number of stories in a building, see the methodology in the C-MU zoning district. This height limitation supersedes height limitations in the underlying zoning district.
7.
Façade transparency. Where build-to zones or civic spaces are shown on the regulating plan, facades must be at least 30% transparent at the ground story and 20% transparent at each upper story, measured using the methodology in the C-MU zoning district (unless different percentages are specified on the regulating plan).
8.
Encroachments. Architectural elements may project beyond the closest point to a property line where an exterior wall may be constructed to the same extent as allowed in the C-MU zoning district, irrespective of setback requirements in the underlying zoning district.
9.
Parking setbacks. New or reconfigured surface parking lots must be set back at least fifty (50) feet from US Highway 1 and at least thirty (30) feet from all other existing and new streets.
10.
Parking garages. Parking spaces may be provided under or in buildings or in dedicated parking garages instead of being provided in uncovered surface parking lots. Such parking spaces need not comply with the minimum setbacks for surface parking lots, but must be screened from view from all streets. Screening may be provided by rooms in the same building or with a liner building that is at least two (2) stories tall with rooms at least twenty (20) feet deep.
11.
New streets. Where a new street is shown on the regulating plan, the new street must be constructed using the standards in the C-MU zoning district (unless different standards are specified on the regulating plan).
12.
Sidewalk easements. Where a sidewalk easement is shown on the regulating plan, the easement must be dedicated and the sidewalk must be constructed using the standards in the C-MU zoning district.
Figure 45-35.1-A-1: Camelot Regulating Plan
Figure 45-35.1-A-2: Camelot Illustrative Plan
Figure 45-35.1-B-1: Crystal Cove Regulating Plan
Figure 45-35.1-B-2: Crystal Cove Illustrative Plan
Figure 45-35.1-C-1: Shore Court at US 1 Regulating Plan
Figure 45-35.1-C-2: Shore Court at US 1 Illustrative Plan
(Ord. No. 23-79, § 1, 10-25-79; Ord. No. 16-87, § 1, 10-22-87; Ord. No. 2006-05, § 1, 4-13-06; Ord. No. 2009-16, § 6, 11-12-09; Ord. No. 2011-10, § 2, 5-26-11; Ord. No. 2014-09, § 14, 9-25-14; Ord. No. 2015-10, § 4, 6-11-15; Ord. No. 2020-06, § 21(Exh. 5), 9-24-20; Ord. No. 2023-06, § 3, 7-13-23)
A.
Intent. The intent of this section is to provide for land uses and activities within land areas designated for the primary purpose of conserving or protecting natural resources of environmental quality.
B.
Uses permitted. Within any part of the OS conservation and open space district, no building, structure, land or water shall be used, except for one (1) or more of the following uses:
1.
Passive recreation;
2.
Flood control;
3.
Protection of quality or quantity of ground water or surface water;
4.
Floodplain management;
5.
Fisheries management;
6.
Protection of vegetative community or wildlife habitats;
7.
Residential and administrative buildings for the protection of the OS district;
8.
Single-family dwellings with accessory buildings customarily incident thereto.
C.
Building height regulations. No main building shall exceed two (2) stories in height and no accessory building more than one (1) story.
D.
Building site area regulations. The minimum lot or building site for each single family dwelling shall be one (1) acre of upland area and have at least one (1) lot dimension, width or length, of a minimum of one hundred fifty (150) feet.
E.
Yard space regulation. No building or portion thereof shall occupy a position fifty (50) feet or less from the upland/wetland boundary of the property.
F.
Coastal zone protection. The Village of North Palm Beach adopts, by reference, the Palm Beach County Coastal Protection Ordinance No. 90-2 in its entirety.
(Ord. No. 20-90, § 2, 6-28-90; Ord. No. 25-90, § 1, 6-28-90; Ord. No. 24-91, § 1, 7-11-91; Ord. No. 2020-06, § 22, 9-24-20)
Article 1 Established.
The Northlake Boulevard commercial district shall consist of real properties within the village on the north side of Northlake Boulevard between Alternate A1A and US Highway 1 as indicated on the official zoning map.
Article 2 Consistency With Comprehensive Land Use Plan
The establishment of the C-NB district is hereby declared consistent with the village comprehensive plan.
Article 3 General Provisions
Sec. 3-1 Applicability.
A.
Applicability. The provisions of the C-NB district shall apply to all existing and future development within the boundaries of the C-NB district as follows:
1.
All new development.
2.
All renovations, additions, or redevelopment to existing structures where the cost of such is greater than fifty (50) percent of the assessed improvement value of the parcel, indicated on the most recent tax roll of Palm Beach County Property Appraiser, or an increase of greater than twenty (20) percent of the square footage of the existing structure shall conform to one hundred (100) percent of the C-NB Regulations.
3.
When the use of an existing structure ceases for one hundred eighty (180) consecutive days, or as otherwise determined to be a discontinued or abandoned use by the local zoning code.
B.
Invalid approvals. Invalid development orders or permits of projects, which have been revoked or have expired shall be subject to all applicable provisions of the C-NB district.
Sec. 3-2 Procedures, variances, and waivers.
A.
Submittal and review procedures. Development or redevelopment within the corridor shall adhere to the regulations imposed by the C-NB district. Compliance with the standards of the C-NB district shall be demonstrated by submittal of architectural drawings and a site development plan or site improvement plan in accordance with village regulations, which generally require site plan and appearance approval before building and other permits may be issued. That approval shall reflect the restrictions imposed by the C-NB district.
B.
Variances. Variances may be granted by the village to standards in the C-NB district using the same procedures and criteria the village uses in granting variances from other regulations (see section 45-50).
C.
Waivers. Waivers may be granted by the village to certain standards in the C-NB district in accordance with the applicable village procedures for granting waivers (see section 45-51), with these additional requirements:
1.
The waiver process in the C-NB district cannot be used to:
a.
Increase the allowable residential density or building height.
b.
Add uses that are not allowable under this Code.
2.
These additional findings must be made before the village approves a waiver in the C-NB district:
a.
The proposed waiver meets the intent of the Northlake Boulevard regulations adopted concurrently by the village, county, Town of Lake Park, and City of Palm Beach Gardens.
Article 4 Zoning Regulations
Sec. 4-1 Development review regulations.
A.
Allowable Uses. Table 4-1 indicates allowable uses in the C-NB district.
1.
The uses listed in Table 4-1 are grouped into four (4) use groups: Residential Uses, Lodging Uses, Business Uses, and Civic, Education & Recreation Uses.
2.
In one (1) of the columns following each listed use, a symbol is provided to indicate that:
a.
This use is permitted by right; or
b.
This use may be approved as a special exception; see section 45-16.2 for standards and procedures; or
c.
This use, like other uses not listed in Table 4-1, is not permitted in the C-NB district.
3.
Terms in Table 4-1 are defined in section 45-2 under "Use Groups," with the exception of the terms private docking and marina, which are defined in subsection 5 below.
4.
Also refer to section 45-16.1 on uses that are similar to uses listed in Table 4-1.
5.
For the purposes of Table 4-1, private docking means the installation of docks, slips or piers for the private use of the owner or occupant of the immediately adjoining upland property. The length and width of docks and piers and the location of dolphin poles and mooring posts are regulated by chapter 5 of this code.
6.
For the purposes of Table 4-1, marina means the installation of docks, slips or piers for commercial purposes. A marina shall comply with the following supplementary use standards:
a.
For each boat slip, a marina shall provide access to a facility for sewage pump out and potable water approved by the Palm Beach County Health Departments.
b.
The length and width of docks and piers and the location of dolphin poles and mooring posts are regulated by chapter 5 of this code.
c.
An accessory marine store shall be permitted.
d.
No live aboard vessels shall be permitted.
Table 4-1 Allowable Uses
B.
Building height. Building height is regulated through the architectural standards in Article 5; in no case may a building in the C-NB zoning district exceed four (4) stories in height. For the purpose of calculating the number of stories in a building, stories shall be defined as the space between finished floor and finished ceiling, adjusted as follows:
1.
Each level devoted to parking is considered as individual story when calculating the number of stories in a building.
2.
A mezzanine will not count towards the number of stories provided that the total area of mezzanine level is less than forty (40) percent of the floor area of the main story below.
C.
Existing planned development districts. Properties within the jurisdiction of the village, which have a PUD designation at the time of adoption of the original NBOZ overlay in 2003, shall be permitted to have uses and design guidelines in accordance with the development order for that planned development district so long as the development order is in effect. Any amendment to the PUD will have to comply with the design guidelines of the current C-NB district.
D.
Accessory use. An accessory use is customarily associated with the principal use, incidental to the principal use, and subordinate in area, extent or purpose, and serves only the principal use. Accessory uses shall be subject to the following:
1.
All accessory uses shall be located on the same lot as the principal use.
2.
A use that is an accessory to a nonresidential principal use shall not exceed thirty (30) percent of the floor area or business receipts of the principal use.
E.
Parking and loading. Properties will retain the existing parking ratios as of the date of adoption of the C-NB Code, which are listed in C-S code section 45-33.E. A new mixed-use development or mixed-use redevelopment may be granted the mixed-use parking standards listed in Table 16.A within 45-31.H.
a.
Physical standards for parking lots, driveways, and loading are provided in subsection 45-36.J.
b.
Mixed-use developments qualify for the shared-parking percentage reductions specified in Figure 14 in 45-31 (H) provided the development includes at least 10% of its gross floor area in a second category on Figure 14 (residential, lodging, office, business, and civic/education uses).
F.
Measuring distances. All required distances between structures and/or uses within this article shall be measured and determined irrespective of existing municipal boundaries.
G.
Notwithstanding anything contained elsewhere within this Code, the properties covered by the C-NB district which have approved uses under the immediately prior zoning district of the village that are considered or deemed not approved uses in the land use chart above, shall retain their permitted status rather than being deemed non-conforming (see sections 45-60-45-68).
Article 5 Architectural Elements
Sec. 5-1 General provisions.
A.
Intent. The provisions of this article are established to provide the C-NB district with an overall architectural style that is consistent with the area and will assist in revitalization and redevelopment of the entire area.
B.
Applicability.
1.
New buildings or structures constructed within the C-NB district shall conform to one hundred (100) percent of the C-NB district design guidelines.
2.
All renovations, additions, or redevelopment to existing structures where the cost of such is greater than fifty (50) percent of the assessed improvement value of the parcel, indicated on the most recent tax roll of Palm Beach County Property Appraiser, or an increase of greater than twenty (20) percent of the square footage of the existing structure shall conform to one hundred (100) percent of the C-NB district regulations.
3.
All renovations, additions, or redevelopment of existing structures where the cost of such is less than fifty (50) percent of the assessed improvement value of the parcel, indicated on the most recent tax roll of Palm Beach County Property Appraiser, or an increase of less than twenty (20) percent of the square footage of the existing structure shall conform with article 5: architectural elements to the greatest extent possible.
4.
Minor repairs, maintenance, or similar improvements are exempt from the C-NB district regulations.
C.
Compatibility with setting. Buildings shall be designed to be compatible with the surrounding manmade and natural environment to achieve an overall, unified design and character for the C-NB district. Design shall consider:
1.
The massing of buildings to encourage and allow pedestrian access between sites and structures;
2.
The avoidance of blank walls or similar features without architectural interest;
3.
The variety of protective features, such as arcades and awnings, building overhangs, landscaping;
4.
And the size, location, and shape of windows and doors.
D.
Alternative architectural styles. The village may authorize the use of an alternative architectural style if determined to be consistent with the surrounding architectural character and design intent of the C-NB district.
E.
Facade/wall height transition. New developments that are located within one hundred fifty (150) feet of an existing building, and are more than twice the height of any existing building within one hundred fifty (150) feet shall provide massing elements to provide an appropriate structure transition.
1.
The transitional massing element can be no more than one hundred (100) percent taller than the average height of the adjacent buildings.
2.
Facades shall have architectural articulation at the pedestrian level and at the roofline.

Facade Wall Height Transition
F.
Illustrative architectural elements. Drawings found in Attachment A represent architectural elements that are appropriate and/or inappropriate for the C-NB district as per this article. They are intended for illustrative purposes only, to guide the property owner and village through the design intent of the C-NB district and are not to regulate or suggest specific architectural design.
Sec. 5-2 Design treatments.
A.
Building design. Structures shall be required to provide three (3) of the following minimum design treatments:
1.
The main facades shall incorporate architectural elements, which create a better human scale, such as;
a.
Canopies or porticos integrated with the building's massing and style;
b.
Overhangs proportional in size to the mass of the building; and
c.
Arcades.
2.
Pedestrian amenities such as benches, sculptures, tables with umbrellas, and trash receptacles;
3.
Peaked roofs with minimum twelve (12) inch overhangs;
4.
Ornamental and structural architectural details, which are integrated into the building structure and overall design; and
5.
Architectural treatment on all four (4) facades/elevations.
a.
Articulation of individual storefronts or facades greater than fifty (50) feet wide;
b.
Window and door openings expressed as individual units as opposed to window wall strips;
c.
Uniform design; and
d.
Any other treatment determined by the village to meet the intent of this section.

Building Design
B.
Unity of character. Buildings or structures, which are part of an existing or future complex shall have a unity of character and design.

Unity of Character
C.
Style. Appropriate historical "themes" as defined by this article are permitted.
D.
Identical buildings. Buildings and structures that are identical or similar in design shall not be permitted throughout the corridor unless each building is part of an overall development with uniform architectural themes.
E.
Scale. New structures shall relate to the form and scale of surrounding architecture. Buildings taller than two (2) stories shall be evaluated as to their visual impacts upon adjacent structures.
F.
Compatible exterior materials and architectural elements.
1.
Lattice work, decorative moldings.
2.
Covered porches with columns and railings.
3.
Arbors, trellises, gazebos, picket fences.
G.
Incompatible architectural elements. Unarticulated, flat, or blank facades are not permitted within the C-NB district.

Incompatible Architectural Elements
H.
Proportion. The proportion of the major elements of a development such as windows, doors and storefront design shall be consistent throughout the development.
Sec. 5-3 Building facade/elevation.
A.
Building features and ornamentation. The following building features and ornamentation are encouraged:
1.
Cornices and parapets, moldings, pilasters, window surrounds, asymmetrical facades, multi-level roofs, and similar elements;
2.
Tile, plaster, poured concrete, or brick materials, consistent with design and style;
3.
Functional and ornamental balconies and balustrades located on the walls or facades facing public rights-of-way, excluding alleys.
4.
Arcades designed with arches; and
5.
Exterior detail elements such as banding and other applied stucco detailing.
B.
Preferred exterior materials. Preferred building exterior siding materials shall include stucco and brick, however cast stone, split blocks, ceramic tiles, high quality coated metal panel systems, and stone are acceptable. Materials including woods, metal siding, fluted block and glass window systems are discouraged within the C-NB district.
C.
Recesses/projections. Facades greater than fifty (50) feet in length shall incorporate recesses and projections a minimum of twelve (12) inches in depth along a minimum of twenty (20) percent of the total length of the facade. The recesses or projections shall be distributed along the facade with a maximum spacing of one hundred (100) feet between each recess or projection.
D.
Visible facades. All building facades visible from public rights-of-way and adjacent properties shall be designed with regard to their surroundings and should not be construed as creating look-alike buildings. Harmony shall be achieved through the proper use of scale, proportions, form, materials, texture, and color.
E.
Trademark forms and colors. Buildings and structures which use trademark or symbolic forms and colors and which have a negative impact on the visual environment of the area, as determined by the village, are prohibited.
F.
Blank walls. Blank walls shall not exceed ten (10) feet in height or twenty (20) feet in length. Control and expansion joints shall constitute a blank wall, unless used in a decorative pattern with varied materials or textures and spaced a maximum of ten (10) feet on center. Relief and reveal depth shall be a minimum of three-quarter (¾) inch. Building wall offsets, including projections, recesses and changes in floor level, shall be used to add architectural interest and variety.

Blank Walls
_____
G.
Other features. Other features, such as gutters, down spouts, vent stacks, vent pipes, and flashing shall be painted in such a way so the color is consistent with the color scheme of the building.
H.
Storefronts. Individual storefront elements of fifty (50) to one hundred (100) foot widths shall be incorporated into the front facade to create a smaller scale for the building. Individual ground-level retail uses with exterior public access that are part of a larger freestanding building shall have display windows along a minimum of twenty (20) percent of the facade length. Windows shall be defined with details such as frames, sills, shutters, planters, relief trims, or lintels.
Sec. 5-4 Building color and finish.
A.
General. Building materials and color selection shall achieve visual order through the consistent use of compatible color palettes.
1.
All storefronts within a development shall utilize a consistent palette of materials and textures.
a.
Variation of individual storefronts within a given palette of materials may be permitted, however principal walls and facades must maintain a uniform color.
b.
Different colors for individual storefronts within a complex are permitted as long as overall design integrity is not compromised.
2.
Color should be chosen to add to the retail environment of these buildings.
3.
The use of color to attract attention to a business from a distance is discouraged.
B.
Color palette. Colors of the structures within the C-NB district are to reflect the following characteristics:
1.
Primary colors for structures must be white, light gray, eggshell, pale blue, pale green, coral, peach, pale yellow, buff, beige, and sand.
2.
Secondary building colors should be limited to twenty-five (25) percent of the wall area. These colors may consist of a medium intensity of the base building color or a complimentary color.
3.
Trim colors shall be limited to ten (10) percent of any single wall area. Trim colors are used for accent and identifying purposes and are the brightest group of colors allowed. These colors include greens, blues, yellows, and others that are found in our lush landscape and natural features.
4.
Ornamentation, trim, courses, window frames, and door frames may be painted white or a contrasting color such as dark brown, dark gray, blue, light green, brown, plum, black.
5.
Roof materials may be brown, gray, white or other color consistent with the overall color scheme of the structure.
_____
Sec. 5-5 Architectural elements.
A.
Pedestrian walkways. Pedestrian walkways with arcades, awnings or colonnades shall be provided along the front and sides of buildings and be integrated with adjacent properties. Arcades or colonnades shall have a minimum clearance width of six (6) feet and minimum clearance height of twelve (12) feet. Awnings shall have a minimum clearance width of six (6) feet and minimum clearance height of eight (8) feet.

Pedestrian Walkways
B.
Building height. Building height is defined by the applicable building code. Maximum building heights are subject to a finding of compatibility of adjacent structures as follows:
1.
A maximum height of forty (40) feet.
C.
Entrances. Entrance design elements that are intended to give protection from the sun and adverse weather conditions shall be integrated into a design style for the building. Each freestanding principal structure shall have a minimum of one (1) clearly defined primary public entrance feature. The primary entrance shall incorporate a minimum of one (1) design element each from Tables 5-5A and 5-5B below:

Entrances
Table 5-5A
Primary Entrance
Feature Design Element
Table 5-5B
Secondary Decorative Treatment
D.
Mechanical equipment screening. All rooftop mechanical equipment shall be located at a distance from the edge of the building and properly screened so as not to be visible from any street or adjoining property. Materials used for screening purposes shall be compatible with the architectural style, color, and materials of the principal building.

Mechanical Equipment Screening
E.
Cornices. Existing cornices should be retained and preserved.
_____
Sec. 5-6 Window/door treatments.
A.
Windows. The following major design characteristics are encouraged:
1.
Arches integrated into window designs;
2.
Trim color in contrast with principal color of structure;
3.
Large ground level store front windows, consisting of at least fifty (50) percent of the wall area of the storefront;
a.
The windows of all ground floor businesses open to the public shall remain clear of curtains, shutters, or similar visual barriers, which would obscure interior displays or activities.
b.
Reflective or darkly tinted glass, which prevents seeing into the building is not permitted on the ground level.

Windows
_____
4.
Recessed openings;
5.
Hurricane/security panels or shutters which are removable, recessed, or architecturally compatible with overall design, and consistent with wind load resistance standards; and
6.
Replacement windows should fill the entire opening and duplicate the original pattern. Surrounding trim should be retained in the proper style and proportion.
B.
Doors. The following major design characteristics are encouraged:
1.
Recessed openings;
2.
Scaled and proportionate to balance of structure;
3.
Articulated and ornamental door design; and
4.
Use of materials to convey mass and strength.
C.
Awnings. Awnings shall reflect colors that compliment the existing architecture and not detract from the storefront or from adjacent storefronts.
1.
All awning supports should be attached to the building, not placed in the sidewalk or extending into the parking lot. Additionally, awning frames should be simple pipe frames, well concealed by canvas covers or attachments.
2.
Plastic backlit awnings or awnings constructed of shiny materials are not permitted.

Awnings
_____
D.
Fenestration and details. Architectural features or details such as windows, awnings, covered arcades, sills, shutters, reliefs, trims, columns, pilasters, quoins, reveals, cornices, horizontal banding, arches, decorative vents, and/or accent tile, shall be integrated into the facade to avoid the appearance of a blank wall and shall be provided along a minimum of sixty (60) percent of the facade length of the front and side facades, and rear facades if continuous to a public street or residential zoning district.
E.
Materials. Doors and windows should be glass and aluminum (painted) storefront, high quality steel and glass systems, high quality woods such as plantation grown teak or mahogany, and brass, bronze or stainless steel.
F.
Exterior treatment. The exterior treatment of the front elevation shall consist of a minimum of two (2) different building materials, textures, or finishes at a ratio of a maximum of eighty (80) percent for the primary treatment and a minimum of twenty (20) percent total for the secondary treatment. Exterior finishes such as stucco, brick, wood, coquina or cut stone are encouraged. The surfaces of multiple exterior storefronts within a building, except regional commercial facilities, shall compliment contiguous storefronts.
G.
Kick plates. Kick plates protect windows by raising the glass area to a safer and more easily viewed height. New storefront can have simplified kick plates, or have an all-glass front that creates a kick plate line and proportion by use of a framing bar or painted line.
Sec. 5-7 Preferred roof materials/styles.
A.
Design types. The following major design characteristics are encouraged.
1.
Flat roofs with an articulated parapet of four (4) feet in height necessary to screen mechanical equipment.
2.
Hip or gable roofs, minimum of 1:3 pitch, positioned so that the hip-roof end is facing the street.
3.
Exposed rafter tails.
4.
Pitched roofs or shed-style arcades of flat, S-shape, or barrel vaulted cement or clay tiles are encouraged.
5.
Standing seam metal roofs made of copper, stainless steel or galvanized steel are acceptable. Other metal roof types including industrial rib roofs are prohibited.
6.
Mansard roof, which shall wrap around the building so that there is visual continuity around the entire building. Vertical roofs and mansard roofs used on a portion of the building perimeter only are prohibited.
7.
Overhangs over pedestrian walkways are encouraged to provide shade and rain protection. All overhangs shall wrap around the building so that there is visual continuity around the entire building.
B.
Treatments. Roof features shall be in scale with the building's mass and complement the character of adjoining and or adjacent buildings.
C.
Edge and parapet treatment. A minimum of two (2) locations, the roof edge and/or parapet shall have a vertical change from the dominant roof condition a minimum of four (4) feet. At least one (1) such change shall be located on a primary facade adjacent to Northlake Blvd. Designers are encouraged to articulate the parapet wall as a means of adding interest to the building facade and to screen any mechanical equipment.
D.
Preferred materials for pitched roofs. Roofing material should be constructed to enhance the appearance of the community. Materials shall include glazed or unglazed ceramic tiles, metal shingle, concrete tile, or slate barrel, "s" shape, or similar style clay or cement tiles.
E.
Large, unarticulated roofs. The roofline at the top of the structure shall not run continuously for more than one hundred (100) feet without offsetting or jogging the roof plane.

Large, Unarticulated Roofs
_____
Sec. 5-8 Definitions.
A.
The definitions set forth in this section shall be construed to be the same as if incorporated in the villages' development regulations.
1.
Architectural composition. The scale, height, mass, proportion, color, form, style, detail, treatment, texture, construction material, and roof design of a project or building.
2.
Articulated parapet. A parapet with a height variation proportional to the building height.
3.
Balustrade. A series of balusters with a top and bottom rail.
4.
Bracket. A decorative support feature located under eaves or overhangs.
5.
Canopy. An ornamental roof-like structure used on commercial buildings, which provide advertisement space, shade, and protection for the storefront and pedestrian traffic.
6.
Compatible/compatibility. Design that utilizes accepted site planning (e.g. building placement, orientation and siting) and the elements of architectural composition within the context of the surrounding area. Similar adjacent land uses or square footage shall not necessarily constitute architectural compatibility.
7.
Complement/complementary. Having similar architectural composition.
8.
Dormer. A secondary feature of a building housing a window or vent, which is set upon the slope of a roof surface. Dormers may provide ventilation, lighting, or auxiliary living space.
9.
Eave. The projecting overhang at the bottom edge of a roof surface.
10.
Exposed beam. A decorative wooden beam that appears to support eaves, prevalent on Bungalow-style residences.
11.
Frieze. A wide facing board located at the junction of the exterior wall and roof eaves.
12.
Gable roof. A triangular section at the end of a pitched roof.
13.
Historical "themes." Any building, structure, or other architecture which is historically or architecturally significant. Recognized architectural styles such as Spanish Eclectic, Mediterranean Revival, Florida Vernacular, Bermuda/Island is appropriate for the C-NB district.
14.
Hip roof. A roof with sloping sides and ends.
15.
Lattice. A panel of criss-crossed diagonal or perpendicular slats often utilized as decorative infill between masonry foundation piers.
16.
Lintel. A horizontal beam located above a window or door.
17.
Louver. A door or window comprised of overlapping downward sloping slats, which shed rain while admitting light and air.
18.
Masonry. Brick, block, or stone, which is secured with mortar.
19.
Massing. A term used to define the over all volume or size of a building.
20.
Molding. A continuous decorative strip of material applied to a surface.
21.
Parapet. A solid protective or decorative wall located along the outside edge of a roof.
22.
Rafter. A wooden member of a roof frame, which slopes downward from the ridgeline.
23.
Scale. A term used to define the proportions of a building in relation to its surroundings.
24.
Shed roof. A roof with a single sloping pitch.
25.
Stucco. A masonry material applied as exterior wall fabric.
26.
Substantial renovation. Any expansion, alteration, renovation, addition, or redevelopment to existing structures where the cost of such is greater than fifty (50) percent of the assessed improvement value of the parcel, indicated on the most recent tax roll of Palm Beach County Property Appraiser, or an increase of greater than twenty (20) percent of the square footage of the existing structure.
Article 6 Reserved Similar provisions can now be found in art. VIII.
Article 7 Signage and Outdoor Displays
Sec. 7-1 General provisions.
A.
Intent. It is the intent of this article to:
1.
Regulate and limit the existing and proposed posting, display, erection, use and maintenance of signs and other advertising structures within the C-NB district.
2.
Protect property values, create a more attractive economic and business climate, enhance and protect the physical appearance of the community and preserve the scenic and natural beauty of the C-NB district.
3.
Secure and preserve the right of free expression guaranteed by the First Amendment of the Constitution of the United States.
B.
Nonconforming signs. A nonconforming sign is any sign which was established pursuant to the issuance of a sign permit on or before the effective date of these regulations, and which is rendered nonconforming by the provisions of this article.
1.
All accessory signs, wall signs, freestanding signs, awning signs, pole signs, and ground signs erected within the corridor that do not conform to the terms of this article shall conform by May 31, 2014 or be removed from the premises.
2.
A face change on a wall sign, awning sign, pole sign or ground sign will not require the sign to conform. However, all other signs and outdoor displays including, but not limiting to flags, balloons, banners and temporary signs shall be removed within thirty (30) days of the effective date of this article.
3.
A nonconforming sign may not be enlarged or altered.
4.
If a nonconforming sign is damaged or destroyed by any means to the extent of fifty (50) percent or more of its replacement value at the time of the damage, the sign may not be rebuilt or used thereafter unless it conforms to all of the provisions of this article.
5.
Legal billboards that are subject to existing settlement agreements with Palm Beach County are not to be considered nonconforming, and therefore are not subject to the amortization schedule set forth in the C-NB district.
C.
Amortized signage. Signs subject to an amortization schedule by the village, prior to the adoption of the C-NB district, shall be required to adhere to the previous amortization schedule.
D.
Removal of nonconforming signs. Any sign which may become nonconforming as a result of these regulations may be continued in operation and maintained for ten (10) years as a legal nonconforming sign, provided that:
1.
Damaged nonconforming signs, which may not be reconstructed or repaired under the terms of this section, shall be removed within twenty (20) days after the damage or destruction occurs.
2.
In the event the damage or destruction is less than fifty (50) percent of its replacement value at the time, the sign may be restored to its original condition and may continue to be displayed.
3.
Normal maintenance of nonconforming signs shall be permitted, including necessary non-structural repairs and incidental work, which does not extend or intensify the nonconforming features of the sign.
E.
Prohibited signs. It shall be unlawful to erect or keep any sign not expressly authorized by, or exempted from, this article.
F.
Non-commercial messages. Any sign erected pursuant to the provisions of this article may, at the option of the applicant, contain either a non-commercial message unrelated to the business located on the premises where the sign is erected or a commercial message related to the business and located on the business premises pursuant to the following regulations:
1.
The non-commercial message may occupy the entire sign face or portion thereof.
2.
The sign face may be changed from commercial to non-commercial messages as frequently as desired by the owner of the sign, provided that the following is true:
a.
the size and design criteria conform to the applicable portions of this article;
b.
the sign is allowed by this article;
c.
the sign conforms to the requirements of the applicable zoning designation; and
d.
the appropriate permits are obtained.
3.
For the purposes of this sign code, non-commercial messages shall never be deemed off-premises.
Sec. 7-2 Appearance.
A.
General. All permanent signs shall comply with the requirements and procedures of the C-NB district and village regulations and shall be part of the architectural concept and character of the site. Lighting, materials, size, color, lettering, location and arrangement shall be harmonious with the building design.
1.
If external spot or flood lighting is used, the light fixtures and light source shall be arranged so that the light source is shielded from view.
2.
Excessive brightness and brilliant colors shall be avoided.
B.
Maintenance. All signs, including their supports, braces, guys and anchors, electrical parts and lighting fixtures, and all painted and display areas, shall present a neat and clean appearance. The vegetation around the base of ground signs shall be neatly trimmed and free of unsightly weeds, and no rubbish or debris that would constitute a fire or health hazard shall be permitted under or near the sign. Examples of unacceptable maintenance and repair include the following:
1.
Cracked, ripped, or peeling paint present on more than ten (10) percent of the surface area of a sign;
2.
Bent, broken, loose, or otherwise insufficiently attached supports, struts, or other appendages;
3.
Partial illumination for more than fourteen (14) days;
4.
Obstruction of sign face by weeds, vines, or other vegetative matter; and
5.
Maintaining a position that is more than fifteen (15) degrees from vertical for more than ten (10) successive days.
Sec. 7-3 Exempt signs.
A.
General. The following signs are exempt from these sign regulations and applicable permit fees, provided they are not placed or constructed so as to create a hazard of any kind:
1.
Political signs. Political signs shall comply with the regulations of the village.
2.
Holiday lights and decorations. The display of holiday lights and decorations shall comply with the regulations of the village.
3.
Manufacturer signs. Signs incorporated into machinery or equipment by a manufacturer or distributor, which identify or advertise only the product or service dispensed by the machine or equipment, such as signs customarily affixed to newspaper racks, telephone booths, and gasoline pumps.
4.
Merchandise displays. Merchandise displays behind storefront windows so long as no part of the display moves or contains flashing lights.
5.
Religious displays. Religious displays as permitted by law.
6.
Works of art. Works of art, ornamental figurines and the like, both two and three-dimensional, used for decorative purposes and not related to the operation of a commercial enterprise.
Sec. 7-4 Temporary signs.
A.
Generally. Temporary signs do not require a building permit and are allowed throughout the corridor, subject to the restrictions imposed by the C-NB district and village's regulations. The sign shall not be an electric/illuminated sign.
B.
Removal of illegal temporary signs. Any temporary sign not complying with the requirements of this section is illegal and subject to immediate removal by the village at the expense of the owner and/or individual responsible for the illegal placement.
C.
Restrictions. Advertising for the following purposes may be displayed:
1.
Construction signs. To identify development construction in progress.
a.
Such message shall not be displayed more than sixty (60) days prior to the beginning of actual construction of the project, and shall be removed when construction is completed.
b.
If a message is displayed pursuant to this section, but construction is not initiated within sixty (60) days after the message is displayed, or if construction is discontinued for a period of more than sixty (60) days, the message shall be removed, pending initiation or continuation of construction activities.
c.
Upon final certificate of occupancy of a completed residential or nonresidential structure, such sign shall be removed.
2.
For-sale signs. Such signs shall comply with the regulations of the village.
3.
Grand opening signs. To announce the opening of a new business or the change of ownership of an established business shall be permitted in addition to other signs, which may be permitted by this regulation.
a.
Signs shall not remain in place for more than seven (7) days commencing immediately upon the opening of a new business or the change of ownership of an established business.
4.
Special event signs. Such signs shall be placed no more than fifteen (15) days prior to the beginning of the event and provided further that all such signs shall be removed within forty-eight (48) hours after the event. Approval of the size and locations of the signs by the village is required.
_____D.
Permissible size, height, location and number of temporary signs.
Table 7-4
Permitted Temporary Signs
Sec. 7-5 Accessory signs.
A.
Permitted. A permanent accessory sign may be a ground or monument sign with one (1) or two (2) faces or wall signs with one (1) face.
B.
Content. Signs permitted pursuant to this section may contain any noncommercial message, which has not been declared by a court of competent jurisdiction to be obscene, defamatory or otherwise contrary to law. A permanent accessory sign may only display any combination of the following:
1.
Street address number and/or name.
2.
A logo symbol for the building or the building occupant, which does not exceed fifty (50) percent of the allowable sign area.
3.
Letters depicting the nature of the business and that are a maximum of fifty (50) percent of the height of the letters depicting the name of the building or building occupant.
C.
Sign type and criteria.
1.
Gasoline signs.
a.
One (1) gasoline price sign shall be permitted per gasoline station to provide the price of gasoline only and shall be attached to permanent sign structure or to a building. The price sign shall not be included in the total area of signage otherwise permitted.
b.
Signs providing information needed for motorists to locate the proper service station pump site shall be permitted. Such signs shall include those identifying the type of fuel sold at individual service station pumps, the location of full service and self-service pump islands and other similar information. Such signs shall be of a size, which can be seen by motorists once on the site, but shall not be sized to attract attention of motorists on public rights-of-way.
2.
Flags. A maximum of three (3) flags or insignias of governmental, religious, charitable, fraternal, corporate, or other organizations may be displayed on any one (1) parcel of land. However, flags bearing commercial messages including corporate insignias, trademarks, and logos are considered a sign and therefore counted as part of the permitted business sign square footage as defined by this article.
3.
Parking area directional signs. Parking area directional signs may be erected at each point of ingress and egress to a parking lot or parking area shall not be counted as part of an occupant's allowable sign area. Directional signs shall be subject to the following:
a.
Such signs shall not exceed two (2) square feet in background area nor extend to a height greater than three (3) feet above ground.
b.
Only one (1) such sign shall be allowed at each point of ingress and egress, and such signs shall not create a traffic or pedestrian hazard.
c.
No names or logos are permitted on the sign.
4.
Parking area instructional and related signs. The direction of traffic flow within a parking or loading area, ingress and egress points, areas where no parking is permitted, identification of parking spaces reserved for other specific groups or for individuals, and other similar information.
5.
Vehicle signs. The following vehicle signs are not permitted within the C-NB district:
a.
Signs in excess of ten (10) square feet. Vehicle signs with a total sign area on any vehicle in excess of ten (10) square feet, when the vehicle is parked on the same property as the business being advertised and:
1)
is parked for more than sixty (60) consecutive minutes within one hundred (100) feet of any street right-of-way; and
2)
is visible from the street right-of-way that the vehicle is within one hundred (100) feet of; and is parked on commercially zoned property.
b.
Vehicle signs less than or equal to ten (10) square feet. Vehicle signs visible from any street right-of-way with a total sign area less than or equal to ten (10) square feet, when the vehicle is parked for more than sixty (60) consecutive minutes on a commercially zoned property and on which the business being advertised is located and:
1)
is parked within the front two-thirds (⅔) of the area between the front building line and the front lot line; or
2)
in the case of corner lots, is parked within the front two-thirds (⅔) of the area between the side building line and the side lot line; or
3)
is parked within thirty (30) feet of any street right-of-way.
_____D.
Permissible size, height, location and number of permitted accessory signs.
Table 7-5
Permitted Accessory Signs
Sec. 7-6 Business signs.
A.
Permitted. A permanent sign advertising a business or establishment shall consist of the following:
1.
A canopy or awning sign;
2.
A ground or monument sign with one (1) or two (2) faces;
3.
A wall sign with one (1) face; and/or
4.
A window sign not to exceed twenty (20) percent of the total window area covered.
B.
Content. A permanent sign may only display any combination of the following:
1.
Street address number and/or name of the business or occupant.
2.
A logo symbol for the building or the building occupant which does not exceed fifty (50) percent of the allowable sign area.
3.
Letters depicting the nature of the business and that are a maximum of fifty (50) percent of the height of the letters depicting the name of the building or building occupant.
4.
These restrictions (1, 2 and 3 above) shall not apply to permitted noncommercial messages.
C.
Sign type and criteria.
1.
Canopy or awning signs. Notwithstanding limitations of this article on the projection of signs from the wall of a building, signs shall be permitted on canopies and awnings.
a.
The sign shall indicate only the name of the building or the name of the principal occupant of the building;
b.
The sign shall be painted or printed directly on the canopy or awning; and
c.
The sign shall be counted in determining the area of wall-mounted signs permitted on the wall from which the canopy or awning projects.
2.
Ground signs. The name, logo and address of parcel of land as per the following standards:
a.
A minimum of one (1) sign for parcel of land.
b.
Overall. For parcels with greater than three hundred (300) linear feet of street frontage, one (1) additional sign for each additional seven hundred (700) linear feet of street frontage to include intersecting roadways.
c.
Outparcels. Outparcels of a commercial center are permitted to have one (1) ground sign:
1)
If the outparcel has direct access to Northlake Boulevard.
2)
Overall.
a)
If the outparcel is entitled to a ground sign, street frontage calculations for the outparcel should not be included in the street frontage calculations for the adjacent commercial center.
b)
Outparcel information may be provided in the permitted commercial center ground signs if internally accessed pursuant to regulations of this article.
d.
The maximum area of a ground sign is sixty (60) square feet.
e.
The maximum height of a ground sign is ten (10) feet.
f.
Minimum setbacks. The minimum setbacks for ground signs are as follows:
1)
Two hundred (200) feet between signs located within the same parcel of land.
2)
Fifty (50) feet from sign to a non-right-of-way property line.
3)
Five (5) feet from the public right-of-way.
4)
Eight (8) feet from utility transmission lines.
5)
Four (4) feet from the edge of pavement or curb when placed in an ingress/egress median.
g.
Street frontage. Street frontage is measured as the linear length of a property line adjacent to a public right-of-way.
3.
Wall signs. The name, logo and address of the business to which the sign is accessory and other related information. No wall sign shall be painted directly onto the building.
4.
Window signs.
a.
A maximum of twenty (20) percent of the total window area of each business may be covered with signage or other opaque material such as display racks, merchandise or other items.
b.
Window signs shall be permanent, identifying or informative in nature and such signage shall be included when calculating the allowable square footage for the business.
_____D.
Permissible size, height, location and number of permitted business signs.
Table 7-6
Permitted Business Signs
Sec. 7-7 Street numbers.
A.
General. The regulations of this section are as per Palm Beach County's Bureau of Safety Services Regulations:
1.
Approved numerical and/or alphabetical addresses shall be posted for all new and existing buildings in such a fashion that it is plainly visible and legible from the street or roadway.
2.
All address related numbers/letters shall be posted on contrasting backgrounds and clearly visible from the street.
3.
All building numbers and/or letters shall be a minimum of six (6) inches in height.
4.
Numerals shall be affixed at center or on either end of the building and clearly visible from the street. Multi-unit buildings, in addition, shall have numerical or letter unit designations clearly visible from the street.
5.
All street numbers shall be a contrasting color with the building or background field.
B.
Multi-unit buildings, two stories and up. In multi-unit buildings, two stories and up, directional unit identification signs shall be posted outside of each elevator and stairwell. This will apply only when there is an option for direction of travel.
C.
Additional posting. All multi-unit buildings that can be accessed from the rear, shall have the address and unit numbers posted at the rear of the building. When property layout, landscaping, or driveway design limits the visibility of the address, additional signs shall be posted to identify buildings or direction of travel to reach buildings.
Sec. 7-8 Measurement determinations.
A.
Facade area. The facade area shall be measured by determining the area within a two-dimensional geometric figure coinciding with the edges of the walls, windows, doors, parapets, marquees, and roof slopes of greater than forty-five (45) degrees that form a side of a building or unit.
B.
Sign area. The area of a sign shall be the area within the smallest square, rectangle, parallelogram, triangle, circle or semicircle, the sides of which touch the extreme points or edges of the sign face.
1.
Computation of sign area.
a.
The area of a sign permissible for each classification of sign, as herein set forth, shall include all areas of the sign containing informational and/or directional wording or symbols, and shall include background area of the wording or symbols, as measured by inscribing a continuous line around all the letters or symbols contained thereon.
b.
Sign area for signs not covered by sections herein and except as provided below shall be the area of each face of a sign including the area of the smallest circle, triangle or parallelogram which contains all content, background and structural elements of the sign.
c.
Where a sign is composed of letters attached directly to a facade, window, door, or marquee, and the letters are not enclosed by a border or trimming, the sign area shall be the area within the smallest rectangle, parallelogram, triangle, circle or semicircle, the sides of which touch the extreme points of the letters or pictures.
2.
Exempted from computation of area of freestanding signs. The area of each face of a freestanding sign shall be computed as described herein except that individual support structures shall not be considered to be part of the sign if they:
a.
Support structures which are part of a decorative landscape wall or screen wall shall not be considered to be part of the sign; and
b.
Do not contain letters, symbols or other sign content.
C.
Number of signs. In general, the number of signs shall be the number of non-contiguous sign faces. Multiple non-contiguous sign faces may be counted as a single sign if all the sign faces are included in the geometric figure used for determining the sign area.
1.
Where two (2) sign faces are placed back to back in a single sign structure and are at no point more than three (3) feet apart, it shall be counted as one (1) sign.
2.
If a sign has four (4) faces arranged in a square, rectangle or diamond, it shall be counted as two (2) signs, and shall be the areas of the two (2) largest faces.
D.
Sign height. The height of a sign shall be measured as the vertical distance from the finished grade, excluding berms, at the base of the supporting structure to the top of the sign, or its frame or supporting structure, whichever is higher.
Sec. 7-9 Design, construction, and location standards.
A.
Illumination standards.
1.
All signage less than ten (10) feet in height shall provide lighting that in no manner blinds or shines on adjacent vehicular or pedestrian circulation.
2.
All wall-mounted signs over ten (10) feet in height shall be internally lit (if lighting is utilized).
3.
Appropriate light shields shall be utilized to ensure protection.
4.
All illuminated signs shall be internally lighted and only by lights placed inside a cabinet sign with an opaque background and translucent copy; lights placed inside individual channel letters with a translucent face; or by "halo" lights placed behind individual reverse pan-channel letters.
B.
Placement standards.
1.
Supports for signs or sign structures shall not be placed in, upon, or project over a public right-of-way or public easement.
2.
Sign or sign structures shall not be erected that impedes use of any fire escape, emergency exit, or standpipe.
3.
All ground or freestanding signs shall be erected within landscaped areas.
a.
Minimum distance from the edge of the landscaped area to the sign base shall be three (3) feet.
b.
The landscaping shall consist of shrubbery a minimum of thirty (30) inches high creating a hedge or individual shrubs of the same or varying species thirty (30) inches high spaced not more than eighteen (18) inches apart at their base.
C.
Clearance standards. All signs shall provide a minimum of nine (9) feet of vertical clearance over pedestrian ways and fourteen (14) feet over vehicular ways. Florida Department of Transportation (FDOT) standards shall control on all roadways.
D.
Relationship to building features. A wall sign shall not extend beyond any edge of the surface to which it is attached; disrupt a major architectural feature of the building; or project no more than eighteen (18) inches perpendicularly from the surface to which it is attached.
E.
Format for multiple occupancy complexes. A sign format or master signage program for wall signs to be placed on multiple occupancy complexes shall be approved by the village prior to a wall sign being permitted to be constructed, altered or remodeled after the effective date of the C-NB district. As a minimum, the sign format shall specify the types, dimensions, placement, colors, and shape of the signs and the style of lettering which shall lend a unified appearance to the signs of the occupants in the complex.
F.
Signs required to be designed. The following signs shall be designed by a Florida-registered architect, landscape architect, or engineer:
1.
Wall signs that project perpendicularly from the surface to which it is attached and that are more than twelve (12) square feet in area; and
2.
Ground signs of more than forty (40) square feet in area.
Sec. 7-10 Exterior architectural lighting.
A.
General. The term "exterior lighting," as used in this section, shall mean any variety of lighting forming an integral part of a building. Such lighting shall meet the following requirements and shall be subject to final approval by the village.
B.
Limitations. Exterior lighting shall not:
1.
Flash, revolve, flutter or be animated;
2.
Obstruct the vision of pedestrians.
3.
Project into or over any public street right-of-way including the sidewalk;
4.
Obstruct or interfere with any door, fire exit, stairway, ladder or opening intended to provide light, air, ingress or egress;
5.
Constitute a traffic hazard or be a detriment to traffic safety.
Sec. 7-11 Definitions.
A.
Definitions. The definitions set forth in this section shall be construed to be the same as if incorporated in the village's development regulations.
1.
Accessory sign. A permanent ground or building wall sign that is permitted under this article as incidental to an existing or proposed use of land.
2.
Advertising. Sign copy intended to directly or indirectly promote the sale or use of a product, service, commodity, entertainment, or real or personal property.
3.
Advertising structure. Any structure installed for advertising purposes, with or without any advertisement display thereon, situated upon or attached to real property upon which any poster, bill, printing, painting, device or other advertisement of any kind whatsoever may be placed, posted, painted, tacked, nailed, or otherwise fastened, affixed or displayed; provided, however, that said term shall not include buildings.
4.
Animated sign. A sign with action or motion using electrical energy, electronic or manufactured sources of supply, or wind actuated elements, including rotating, revolving or flashing signs.
5.
Awning sign. A sign painted on, printed on or attached flat against the surface of the awning. An awning is comprised of a lightweight, rigid or retractable skeleton over which an approved cover is attached that provides weather protection, identity and/or decoration and is wholly supported by the building to which it is attached.
6.
Background area of sign. The entire background area of a sign upon which copy could be placed. In computing the area of a sign background, only that face or faces which can be seen from any one direction at one time shall be counted.
7.
Billboard (off-premises sign). A sign advertising an establishment, merchandise, service or entertainment, which is not sold, produced, manufactured or furnished at the property on which said sign is located.
8.
Building facade. All windows, doors and wall areas of a building exterior in one place or elevation thereof.
9.
Construction sign. A temporary sign, which identifies those engaged in construction on any building site, including the builder, contractor, developer, or other persons or artisans concerned in such construction.
10.
Copy. The linguistic or graphic content of a sign.
11.
Copy area of a sign. The actual area of the sign copy applied to any background. The copy area is computed by straight lines drawn closest to the copy extremity.
12.
Development sign. A temporary sign advertising the sale or rental of structures under construction upon land, which has been legally assembled into one development location.
13.
Directional sign. An on premises sign designed to guide or direct pedestrians or vehicular traffic.
14.
Frontage. The length of the property line of any one parcel along the main street on which it borders.
15.
Frontage street facade. That portion of an exterior elevation of a building extending from grade to the top of the parapet wall or eaves and the entire width of the building wall elevation which fronts on a street, unless such parapet wall or eaves shall be over thirty (30) feet high, in which case only the first thirty (30) feet shall be considered the frontage street facade for purposes of this article. Only one street facade shall be designated as frontage street facade.
16.
Ground sign. A sign that is supported by a three (3) foot high maximum base, independent of support by a building; sign and base shall be solid and uniform; shall generally have a columnar line; shall essentially have the same contour (parallel) from grade to top of the sign; and shall be independent of any building for support.
17.
Height of a sign. The height of a sign shall be measured as the vertical distance from the finished grade, excluding required berms, at the base of the supporting structure to the top of the sign, or its frame or supporting structure, whichever is higher. A berm exceeding three (3) feet in height shall be included in the overall measurement of the height of the sign.
18.
Identification sign. A sign at a business location used to identify the name of the business located thereon and/or its principals and address.
19.
Logo. Any symbol, trademark, picture or other graphic representation which is used to signify or identify the particular business or organization.
20.
Monument sign. See "Ground sign."
21.
Multiple occupancy complex. Any use consisting of a parcel of property, or parcel of contiguous properties, existing as a unified or coordinated project, with a building or buildings housing more than one occupant.
22.
Neon tube sign. A sign electronically lighted by exposed tubes containing inert gas.
23.
Nonconforming sign. A sign existing at the effective date of the adoption of this article, which could not be built under the terms of this article.
24.
Occupant (occupancy). The use of a building or structure for commercial transactions.
25.
Off-premise sign. A sign advertising an establishment, merchandise, service or entertainment, which is not sold, produced, manufactured or furnished at the property on which said sign is located.
26.
Painted wall sign. A sign painted on a wall or on any other surface or part of a building or structure.
27.
Parapet. That portion of the facade, which extends above the roofline.
28.
Pole sign. A sign that is supported by one (1) column, upright, or brace in or upon the ground and which is not attached nor a part of the building.
29.
Political sign. Any advertising sign used in connection with a local, state, or national election campaign.
30.
Roof sign. Any outdoor advertising display sign, installed, constructed or maintained on or above the roof of any building.
31.
Sign. An object or device which is designed, intended, used or located so as to be visible by the public from outdoors for the purpose of advertising the property, establishment or enterprise, including goods and services; upon which the sign is located. This definition shall include all parts, portions, frame, background, structure, support and anchorage thereof.
32.
Snipe sign. Any sign of any size, made of any material, including paper, cardboard, wood and metal, when such sign is tacked, nailed, posted, pasted, glued, or otherwise attached to trees, poles, fences or other objects, and the advertising matter appearing thereon is not applicable to the premises upon which said sign is located.
33.
Temporary sign. A sign which is constructed of cloth, canvas, light, fabric, cardboard, wallboard, plywood, metal or plastic which is intended to be displayed for a limited period of time.
34.
Vehicular sign. A sign affixed to or painted on a transportation vehicles or trailer, for the purpose of business advertising; however, not to include signs affixed to vehicles or trailers for identification purposes as required by town regulations.
35.
Wall sign. A sign displayed upon or attached to any part of the exterior of a building, including walls, windows, doors, parapets, awnings and roof slopes of forty-five (45) degrees or steeper.
36.
Window sign. Any sign installed or maintained in the window of any building, visible from any public right-of-way.
Article 8. Site Plan Elements
Sec. 8-1 General design.
A.
Screening of residential. Commercial and mixed-use sites abutting a residential zoning district shall provide screening consisting of the following:
1.
An opaque concrete or masonry wall a minimum of six (6) feet in height,
2.
A buffer area of at least ten (10) feet, including the required opaque wall, and
3.
Landscaping, as per the C-NB district.
B.
Screening of mechanical equipment.
1.
All mechanical equipment shall be screened from public view.
2.
Such screening may include any combination of landscaping and non-living opaque materials.
3.
If building materials are to be utilized for screening purposes, such materials shall be consistent with the architectural design of the principal structure.
4.
Screening shall extend at least one foot above the object to be screened.
C.
Illustrative site plan elements. Drawings found in Attachment A represent site plan elements that are appropriate and/or inappropriate for the C-NB district as per this article. They are intended for illustrative purposes only, to guide the property owner and the village through the design intent of the C-NB district and are not to regulate or suggest specific architectural design.
_____Sec. 8-2 Building orientation and placement.
A.
Continuity of design. Buildings shall reflect a continuity of design within the C-NB district obtained by:
1.
Maintaining the building scale or by gradual changes in form;
2.
Maintaining designated building setbacks;
3.
Extending horizontal line of fenestration; and
4.
The reflection of architectural styles and details, design themes, building materials and colors found in surrounding buildings.
B.
Building mass impacts. Design techniques that lessen development impacts along the corridor are encouraged. Such design techniques include the following:
1.
Placing the structure perpendicular to the public right-of-way;

Structure Perpendicular To The Public Right-Of-Way
2.
Creating a courtyard/plaza effect between structures;

Courtyard/Plaza Effect Between Structures
3.
Opening up views between structures with greater setbacks; and

Views Between Structures
4.
Provision of wider landscape buffers along Northlake Boulevard.

Wider Landscape Buffers Along Northlake Blvd.
C.
Corner lots. On corner lots at an intersection of two (2) or more arterial or major collector roads, buildings and structures shall be designed with additional architectural embellishments such as towers, or other design features, to emphasize their locations as gateways and transition points within the community.

Corner Lots
D.
Building envelope, bulk and setback requirement. In order to establish overall building envelope, bulk, and setback provisions within the C-NB district, the following regulations are established for the purposes of this section.
Table 8-2
Proposed Setbacks

Proposed Setback
E.
Commercial strip development discouraged. Minimum lot sizes and limited access drives shall be used to reduce the potential for commercial strip development. Neighboring properties are encouraged to link their parking lots together and to share common driveways.

Commercial Strip Development Discouraged
F.
Prohibited elements. The following elements are prohibited:
1.
Chainlink fences in public view;
2.
Unfinished concrete or concrete masonry walls excluding architectural concrete;
3.
Artificial plants or turf;
4.
Decorative or commercial display objects;
5.
Visible neon;
6.
Elements with highly reflective or bright colored surfaces; and
7.
Other objects that are not consistent with the C-NB district design goals as per the village.
Sec. 8-3 Off-street parking areas.
A.
Shared parking. As part of an approval of a new or expanded use, new construction, substantial renovation, or alteration or expansion of an existing structure, the use of shared parking to reduce overall parking requirements is permitted. The criteria for approval of an application to establish shared parking includes the following factors:
1.
Use of a building or structure for two (2) or more uses, which possess complementary, rather than competing, peak hours of usage.
2.
Preparation of a shared parking study by a qualified professional engineer, architect, or planner.
3.
Execution of an agreement, in a form acceptable to the village, between the owners and tenants of buildings or structures affected by the shared parking. This agreement shall provide:
a.
A means to re-address the shared parking in the event future parking problems or changes in use occur;
b.
A legal description of the land and structures affected;
c.
For a term of at least five (5) years;
d.
A site plan to indicate uses, hours of operation, parking, etc.;
e.
Assurance of the availability of all parking spaces affected by the agreement.
B.
Offsite parking. Offsite parking not included in a shared parking agreement is not permitted within the C-NB district.
C.
Valet parking. The village may authorize the use of valet parking for any use within the C-NB district subject to the following criteria.
1.
Valet parking shall not utilize more than thirty (30) percent of the onsite parking of a use providing such service.
2.
A request to establish valet parking shall contain the following information:
a.
The location of the valet parking booth or area;
b.
The location and number of parking spaces to be utilized for valet parking;
c.
Evidence that the business owns the parking spaces proposed for valet use or a copy of any agreement, lease, etc. which provides the business with the right to use spaces owned by another individual or entity for valet parking;
d.
The impact of the valet parking service on users who do not patronize the service;
e.
The hours of operation;
f.
Location and text of any signage associated with the valet parking, spaces; and
g.
Buffering or screening that is necessary to mitigate any visual or noise-related impacts on any adjacent residential properties.
D.
Pedestrian circulation in parking facilities. Parking facilities and driveways shall be designed to maximize the safety and convenience of pedestrians walking between parked cars and business entrances as well as between external points and locations on site delineated with special pavement. Pedestrian walkways shall be integrated as follows:
1.
Into the interior and/or perimeter landscaping of parking lots;
2.
Constructed with a specialty paving or similarly firm and decorative surface; and
3.
At least five (5) feet in width; and separated from vehicular and parking areas by grade, curbing and/or vegetation, except for necessary ramps.
E.
Loading facilities. Loading spaces shall not be located within one hundred (100) feet of Northlake Boulevard or other public rights-of-way, excluding alleys.
1.
Loading docks, solid waste facilities, recycling facilities and other service areas shall be placed to the rear or side of buildings and screened from adjacent residential uses.
2.
Screening and landscaping shall prevent direct views of the loading areas and their approaches from adjacent properties or from the public right-of-way.
a.
Screening and landscaping shall also prevent spillover glare, noise, or exhaust fumes.
b.
Screening and buffering shall be achieved through walls, fences and landscaping and shall be opaque and completely obscure the contents and facilities.
c.
Recesses in the building, or depressed access ramps may be used.
3.
Service access shall be behind the building or from secondary streets wherever possible, and screened from general view.
F.
Drive-throughs. In the event that drive-throughs are permitted by use or as a special exception, the village shall review the site plan for the following minimum standards:
1.
Adequate stacking for six (6) vehicles per lane at twenty (20) feet per vehicle;
2.
Proper ingress/egress to the facilities so as to preclude entering and exiting directly from a public right-of-way;
3.
Adequate space for a by-pass lane; and
4.
Any other design deemed appropriate by the village.
Sec. 8-4 Pedestrian amenities.
A.
General design. Uses shall contribute to pedestrian-friendly focal spaces through the provision of aesthetic walking paths, pedestrian spaces with furnishings, public art, generous plantings, marked crosswalks, and vehicular parking and circulation areas clearly separated from such pedestrian amenities.
1.
Sidewalks shall be of barrier-free design to the greatest extent possible.
2.
Pedestrian circulation systems shall include gathering/sitting areas.

Pedestrian Amenities
B.
Width and materials. Sidewalks shall be a minimum of five (5) feet in width and shall be constructed of stone, textured cement, concrete pavers, or brick.
C.
Pedestrian entrances.
1.
Major public entrances shall be located along Northlake Blvd.
2.
A clearly designated pedestrian walkway and similar pedestrian-oriented facilities shall be provided from public sidewalks to public entrance or walkways within a commercial site, as well as between abutting commercial properties.
D.
Pedestrian walkway to Earman River (C-17 Canal). A clearly designated pedestrian walkway shall be provided from public sidewalks to the rear lot line on all properties located between US Highway 1 and a point 200 feet east of the centerline of Southwind Drive. This requirement shall not apply if the location of existing buildings make it impractical.
Sec. 8-5 Site and street furniture.
A.
Exterior lighting. All fixtures used for exterior lighting (building and site) are to be selected for functional and aesthetic value. Decorative pedestrian-scale lighting shall be provided at a height of no more than ten (10) feet with standards constructed from steel, cast iron, aluminum or spun concrete. Lighting standards shall be of a consistent architectural style and shall complement the predominant architectural theme.
B.
Street furniture. Additional amenities such as drinking fountains, benches and shelters or kiosks shall be provided and supplemented with open spaces.
C.
Dumpsters and similar containers. Dumpsters and similar containers, including recycling bins, compactors, etc., shall be screened in a manner consistent with the following:
1.
Similar containers shall be located only at the rear of a building or structure.
2.
Enclosures shall be constructed in a manner consistent with the architectural style, color, materials, etc., of the principal building, and shall screen the dumpsters on all four (4) sides of the enclosure from public view.
a.
An opaque concrete wall or similar material shall screen both sides and the rear of such facilities.
b.
The front of a screen enclosure shall be gated and shall consist of durable opaque materials consistent with the overall design of the project.
c.
Dependent upon the location of an enclosure on the site, landscaping may be required in addition to the opaque screening material.
3.
Alternative dumpster location. When it is not possible to locate the enclosure in the rear of the site, the dumpster shall be enclosed by landscaping to the greatest extent possible.
4.
Access to the dumpster should be provided from a secondary street.
5.
Enclosures are to be designed to provide space to accommodate recycling bins.
D.
Sidewalks. Sidewalks shall be provided along all roadways on both sides of the street. At corners handicapped ramps shall be provided and sidewalks shall continue across driveway and parking lot surfaces using decorative paving materials to delineate crosswalks. All new construction or substantial renovation of existing buildings and structures shall include one (1) or more-clearly delineated walkways from the public sidewalk to the private sidewalk, arcade, pedestrian way, etc. Examples of other complementary materials include the following:
1.
Paver blocks or alternative style or color;
2.
New and used brick; and
3.
Concrete stamped with a pattern.
E.
Retaining walls. Retaining walls shall be constructed as necessary, provided such walls are constructed utilizing the same architectural style, materials, and color of the principle structure.
F.
Alley screening walls. All new construction or substantial renovation of existing buildings and structures shall construct or reconstruct a solid masonry or concrete wall a minimum of six (6) feet in height.
1.
The wall shall be located along the rear property line of the parcel being improved.
2.
Chain link and wooden fences are prohibited.
3.
Properties within the marine district of the C-NB district are exempt from this requirement.
G.
Underground utilities. The village may require existing overhead utilities to be placed underground when located on properties subject to new construction or substantial renovation.
H.
Shopping carts. If a use requires shopping carts, they shall not be allowed to accumulate in any outside area including parking lots and loading areas, and shall be removed from cart corrals in a timely manner and relocated to designated storage areas near the principle structure.
I.
Mailboxes. Mailboxes, including special drop boxes, may be clustered within buildings, grouped under a kiosk, or individually freestanding. In all cases the design and installation of mailboxes shall comply with the following standards:
1.
The village and the U.S. Postal Service shall approve the size, type, and location of mailboxes.
2.
Mailboxes shall be landscaped consistent with and architecturally compatible to the development.
J.
Satellite dishes. Satellite dishes may be installed provided the dishes are not visible from any street, and the color is compatible with the surrounding environment. Plans for the installation of communication equipment, such as dishes and antennas, shall be submitted for review during the planning phase of a project.
K.
Telephones, vending machines, and newspaper racks. All public telephones, vending machines, newspaper racks, and facilities dispensing merchandise or services on private property shall be enclosed within a building, enclosed within a structure, attached to a building, or enclosed in a separate area.
1.
Attached and freestanding structures shall be landscaped consistent with and architecturally compatible with the principal structure.
2.
Public telephones. Wall-mounted and freestanding public telephones visible from a public right-of-way shall be fully or partially enclosed.
3.
Vending machines.
a.
Vending machines dispensing beverages, food, ice, and related consumer products shall not be visible from a public right-of-way.
b.
Vending machines may be located in outdoor enclosures, provided such enclosures are constructed utilizing the same architectural style, materials, and colors as the principal structure.
(Ord. No. 05-2003, § 1, 2-27-03; Ord. No. 2011-02, § 3, 2-10-11; Ord. No. 2011-05, § 2, 4-14-11; Ord. No. 2012-07, §§ 2—4, 7-26-12; Ord. No. 2020-06, § 23(Exh. 6), 9-24-20; Ord. No. 2024-17, § 2, 11-7-24)
The provisions of this article shall be subject to the following provisions and exceptions:
A.
Chimneys, water tanks, radio or television towers, telecommunications antenna/towers, church spires, elevator lofts, flagpoles and parapet walls may be erected above the height limits herein established.
A-1.
No addition to any building and no structure or object shall be erected, placed or maintained or built to a height which exceeds four (4) stories or sixty (60) feet where any portion of said building or of the property upon which it is located is within five hundred (500) feet of any R-1, single-family dwelling district, except in the C-MU and C-3 zoning districts where the height limits and maximum height in feet are defined in sections 45-31 and 45-34.1.
B.
Swimming pools shall be set back at least seven and one-half (7½) feet from the back property line measured from the rim of the pool and not less than five (5) feet from the side property line including the two-and-one-half-foot walk around the pool. The highest projection of the swimming pool shall not exceed two (2) feet. Outdoor fireplaces not exceeding six (6) feet in height may be erected and maintained, said structure, however, shall not be erected within five (5) feet of any rear lot line.
(a)
Swimming pools may be enclosed by screening provided same are not erected closer than five (5) feet from the side and rear yard lines.
(b)
No swimming pool shall be located in the area lying between the front property line and the front building line in the R-1 and R-2 zoning districts.
C.
Detached garages not more than one (1) story in height may be erected and maintained within seven and one-half (7½) feet of the rear line of any such lot.
D.
Walls and fences built within the area between the property line and the building setback line shall not exceed six (6) feet in height; provided, however, that no walls or fences may be erected between the required front yard setback and the front property line except as provided in subsection D-2 below, nor may walls or fences exceed four (4) feet in height for a distance of forty (40) feet from any body of water located within the village. On corner lots, walls or fences shall not exceed four (4) feet in height for a distance of twenty (20) feet from the side property line.
On all building permits for walls or fences greater than four (4) feet in height that are to be located outside building setback lines, there shall be a prominent notice that a village building permit in no way offsets the deed covenants, and that the applicant should also check the deed covenants to protect himself.
D-1.
On vacant lots adjacent to any waterbody, a non-opaque galvanized metal, wrought-iron or chain link fence no greater than four (4) feet in height may be constructed within five (5) feet of the seawall or bulkhead line to restrict access to the waterbody from the vacant lot. Chain link fences may also be vinyl coated.
D-2.
Where a parcel within a residential zoning district abuts a parcel within a commercial or industrial zoning district, a wall or fence not exceeding six (6) feet in height may be erected along the side property line between the front yard setback and the street line provided that such wall or fence is set back at least three (3) feet from the front property line or as otherwise required to comply with the sight triangle and clear zone requirements of the Florida Department of Transportation's Manual of Uniform Minimum Standards for Design, Construction, and Maintenance of Streets and Highways, whichever is greater.
D-3.
The restrictions on the height of walls and fences set forth in this section shall not apply to properties within the Public (P) zoning district where the Village Council determines, in the exercise of its discretion, that a greater height is necessary to protect the public health, safety or welfare.
D-4.
The height of a gate affixed to a wall or fence shall not exceed the maximum wall or fence height, provided, however, that on residential lots, one (1) gate up to twenty (20) feet in width (inclusive of gate posts) may exceed the maximum height by up two (2) feet.
E.
In the event one (1) lot, or portion thereof, and the whole or a portion of a contiguous lot, all in one (1) ownership, shall be used as one (1) building site for one (1) residence building, and its appurtenant outbuildings permitted by this ordinance, then while so owned and used the side lines and rear line of such site shall be deemed to be the side and rear lot lines of such sites.
F.
No business, professional, or commercial activity shall be conducted upon any portion of real property zoned R-1 single-family dwelling district, R-2 multiple-family dwelling district and R-3 apartment dwelling district or within any dwelling thereon or upon a dock, pier or other waterside structure appurtenant thereto and attached to such real property, other than as provided by section 17-2.
G.
In all multifamily residential buildings two (2) stories or greater in height, and in all commercial buildings over four (4) stories in height, which are not equipped with elevators provided with standby emergency power and having minimum cab dimensions which will permit the use of the elevator cab by normal size emergency ambulance stretchers, and in all commercial buildings two (2) stories to four (4) stories in height which are not equipped with elevators having minimum cab dimensions which will permit the use of the elevator cab by normal size emergency stretchers, there shall be a minimum of one (1) access stairway serving every story. Such stairway shall have the following minimum dimensions:
(1)
Minimum width of stairway to be five (5) feet.
(2)
Minimum dimensions of all landings to be ten (10) feet by six (6) feet, six (6) inches.
H.
Patios connected to the rear of a dwelling unit may be enclosed by screening provided there shall be a rear yard of not less than fifteen (15) feet measured from the rear of the screened enclosure to the rear lot line.
I.
There shall be a front yard of not less than forty (40) feet measured from the street line to the front building line in the case of Lots 11 to 35 inclusive, Block 3, as shown on the plat of Village of North Palm Beach, Plat 1, recorded in plat book 24, page 205, Public Records of Palm Beach County, Florida.
J.
Whenever, by this ordinance, off-street parking is required in any commercial or mixed-use district or in any R-3 apartment dwelling district, no such parking facilities shall be hereafter constructed as follows, in addition to any specific requirements of the zoning district: until a permit therefor shall have been issued by the building inspector, and until the plans and specifications therefor are such that:
a.
Such off-street parking area is designed with appropriate means of vehicular access to a public street or alley. The maximum width of a residential accessway to an off-street parking or other vehicular use area shall be twenty (20) feet for two-way vehicular movement and ten (10) feet for one-way vehicular movement, measured at the narrowest point. For commercial uses, two-way accessways shall be twenty-four (24) feet and may be wider only on county and state roads, subject to approval by county and state transportation officials.
(i)
No more than one (1) two-way accessway shall be permitted for any street frontage up to one hundred (100) lineal feet or no more than two (2) one-way accessways shall be permitted for any street frontage up to one hundred (100) lineal feet, such standards to be applicable to any property under one (1) ownership.
(ii)
Where such ownership involves over one hundred (100) feet of street frontage, one (1) additional two-way or two (2) additional one-way drives may be permitted for each additional one hundred (100) feet of frontage or major fraction thereof, except where restricted by other provisions of this Code or by county and state transportation regulations.
b.
Such off-street parking area is designed with appropriate vehicular maneuvering areas. Each required parking space shall measure at least 9 feet by 18 feet.
c.
Such off-street parking area is paved with an asphaltic or concrete surfacing, or other material designed to prevent dust.
d.
Such off-street parking area is so constructed, graded and surfaced as to prevent surface water from draining onto public right-of-way, or on adjoining properties, the outlets for such surface waters to be connected directly or indirectly to storm sewer conduits terminating in existing publicly controlled waterways or in other seepage areas approved by the building department.
e.
Such off-street parking areas shall be used for vehicular traffic only, with no sales, dead storage, repair work, dismantling or servicing of any kind unless expressly permitted by the zoning of the district in question.
f.
If lighting of such areas is to be provided, the plans therefor shall be such that such lighting shall reflect away from any public street and at such an angle as to prevent glare or undue illumination of residential properties in the neighborhood.
g.
Parking lots shall be landscaped as provided in the landscaping regulations in Article VIII (section 45-81 et seq.).
h.
Parking lots shall be designed and improved to facilitate loading and unloading. There shall be adequate space for standing, loading and unloading services to avoid undue interference with public use of streets or alleys.
K.
No carnival, fair, amusement park or circus shall be carried on in any residential or commercial zoning district in the Village of North Palm Beach, including zoning districts R-1, R-2A, R-3, C-MU, C-S and C-G; provided, however, that a carnival, fair or circus may be carried by a nonprofit organization to collect funds to further the purposes of such organization at the premises where the organization is located within the Village of North Palm Beach. No such carnival, fair or circus shall extend for more than three (3) consecutive days, and no such carnival, fair or circus may be open to the public between the hours of 10:00 p.m. and 10:00 a.m. during any day. A permit for such permitted carnival, fair or circus must be obtained from the office of the village manager. There will be no charge or fee for such permit.
L.
No gasoline or oil filling stations and no service station shall be erected within five hundred (500) feet of any church, hospital, school or other similar institution where large numbers of pedestrians congregate, nor within five hundred (500) feet of the location in said village of another gasoline or oil filling station or service station. No church, hospital, school or similar institution where large numbers of pedestrians congregate shall locate or operate within five hundred (500) feet of any gasoline or oil filling station or service station.
The method of measurement that shall apply in such cases shall be by measurement of the airline distance made or taken from the nearest boundary of the lot or premises of a gasoline or oil filling station or service station to the nearest boundary of the lot or premises of a church, hospital, school or other similar institution.
M.
Building height regulations.
(1)
Within the area of the Village of North Palm Beach which lies north of the Intracoastal Waterway and west of U.S. Highway No. 1, no building or structure shall exceed sixteen (16) stories or one hundred sixty (160) feet.
(2)
Within the area of the Village of North Palm Beach which lies north of the Intracoastal Waterway and east of U.S. Highway No. 1, no building or structure shall exceed twenty-two (22) stories or two hundred twenty (220) feet.
(3)
Within the area of the Village of North Palm Beach which lies south of the Intracoastal Waterway and east of U.S. Highway No. 1, no building or structure shall exceed four (4) stories or forty (40) feet, except in the C-MU zoning district where the height limits are defined in section 45-31.
(4)
Within the area of the Village of North Palm Beach which lies south and west of the Intracoastal Waterway and west of U.S. Highway No. 1, no building or structure shall exceed four (4) stories or forty (40) feet, except in the C-MU and C-3 zoning districts where the height limits are defined in sections 45-31 and 45-34.1.
N.
Location of business for retail sales of alcoholic beverages.
(1)
No licensed retail sales of alcoholic beverages shall be carried on where the proposed place of business is within one thousand (1,000) feet of a church or other place of worship, public or private school, hospital, park or playground, or a place of business of another licensed retail seller of alcoholic beverages; provided further, that no licensed retail sales of alcoholic beverages shall be carried on in the C-3, Regional Business District, where the proposed place of business is within five hundred (500) feet of a church, synagogue, temple or other place of worship.
(2)
The measurements provided above shall be made or taken from the main front entrance or entrances of such church or other place of worship, public or private school, hospital, park or playground, or a place of business of another licensed retail seller of alcoholic beverages, to the main front entrance of the applicant's proposed place of business along the route of ordinary pedestrian traffic.
(3)
The restrictions of subsection N.(1) shall not apply to the sale of beer, ale or wine at retail, not to be consumed on the premises.
(4)
The restrictions of subsection N.(1) pertaining to distances from other licensed sellers of alcoholic beverages shall not apply to:
a.
Any bona fide restaurant operating under a Florida 4-COP-SRX license as a restaurant with full kitchen facilities, and fifty-one (51) percent or more of the gross sales are derived from the sale of food and non-alcoholic beverages (alcoholic beverages are to be served only when the restaurant is open for the sale and service of food);
b.
Any bona fide restaurant operating under a Florida 2-COP license as a restaurant with full kitchen facilities where:
(i)
the entire restaurant, including, but not limited to, kitchen facilities, work and storage areas, restrooms and eating areas, consists of at least two thousand (2,000) square feet; and
(ii)
Alcoholic beverages are served for on premises consumption only when the restaurant is open for the sale and service of food.
(5)
Nothing in subsection N.(1) shall prohibit the conduct of licensed retail sales of alcoholic beverages within one thousand (1,000) feet of the North Palm Beach Country Club.
(6)
Churches and other houses of worship, public and private schools, hospitals, parks, and playgrounds may locate and operate within one thousand (1,000) feet of an existing business licensed for the retail sale of alcoholic beverages, and, in such event, the existing business engaged in the licensed retail sale of alcoholic beverages shall not be in violation of section 45-36N.(1).
O.
Xeriscape landscaping practices. Properties within all zoning districts are encouraged to utilize xeriscape landscaping practices to simultaneously enhance the appearance of the property while requiring less water and energy. Xeriscape practices in the village shall be based on the latest published South Florida Water Management District xeriscape manual.
P.
Maximum floor-area ratio. Maximum gross floor area ratios for commercial development within the area of the village defined by PGA Boulevard on the north, Lake Worth on the east and the Intracoastal Waterway on the south and west shall be limited as follows: retail - 0.25; professional office - 0.35; and mixed-use - 0.35.
Q.
Outdoor seating.
(1)
Applicability. Outdoor seating shall be permitted as an accessory use to a building in which a food service establishment is operated, provided that:
a.
The outdoor seating area is adjacent to that portion of the food service establishment which is inside the building.
b.
The outdoor seating is located on property which is either owned or leased by the adjacent food service establishment or the landlord of such food service establishment. (See exceptions in subsection (6))
c.
The outdoor seating can be accommodated without impeding the access of the general public, including persons with disabilities, to the portion of the food service establishment which is located inside the building, or to any other commercial business or other use.
d.
The outdoor seating can be accommodated without creating a need for additional parking spaces which could not be provided on the same site as the building for which the outdoor seating would be an accessory use or would create a non-conforming status for existing parking provided for such building. (See exceptions in subsection (6))
e.
No outdoor seating shall be permitted for adult entertainment establishments.
(2)
Permitting process. An applicant for approval of outdoor seating shall include the proposed outdoor seating as part of an overall application for a building permit and/or site plan and appearance approval or shall seek amendment of an existing building permit and/or site plan and appearance approval to allow for outdoor seating, pursuant to the applicable provisions of this Code. Every application involving outdoor seating shall include the following, in addition to and not in place of anything else which may otherwise be required by any other provision of this Code:
a.
A site plan, drawn to scale, which shows at least the building for which outdoor seating will be an accessory use; the location of the food service establishment which will use the outdoor seating; the location of the outdoor seating and all related fencing screening, or dividing materials; the location of any sidewalks or other pedestrian walkways or passageways which are adjacent to or will be affected by the outdoor seating; and the location of all existing or additional parking for such building.
b.
A copy of the written consent of any person or business who other than the applicant owns or leases any property, including any sidewalk or other public passageway, upon [which] the outdoor seating would be located.
c.
Photographs, renderings, or samples showing the style and color of all furnishings, fencing, screening, or dividing material to be used for or in conjunction with the outdoor seating.
(3)
Conditions of outdoor seating. Outdoor seating shall comply at all times with the following conditions:
a.
Outdoor seating shall be arranged, when in use, in a manner that allows a pedestrian walkway in compliance with applicable accessibility, building, and fire codes.
b.
Outdoor seating located on a pedestrian walkway which provides access to more than one (1) occupant of a building, as in a shopping center, shall be arranged, when in use, in a manner that maintains a passage of not less than five (5) feet in width.
c.
Outdoor seating of an applicant shall not be located on any sidewalk, passageway, or other property adjacent to any other business.
d.
Outdoor seating shall not occupy any area designated for parking. (See exceptions in subsection (6))
e.
Outdoor seating which is used for the service and sale of food or beverages of any kind within the outdoor seating area, shall be physically separated and visually distinct from any immediately adjacent public passageway or walkway by means of approved fencing or screening material which is not less than two (2) feet in height, by means of one (1) or more planter boxes and other plant container, by means of some other approved divider, or any combination of such means, but not including tables, chairs or other seating.
f.
Outdoor seating areas may only contain tables, chairs, umbrellas and/or awnings and required fencing or screening materials. All such equipment shall be compatible in color and style with the exterior of the building and shall not contain or have affixed to it any sign, lettering or advertising of any kind.
g.
Outdoor seating shall be maintained in a secure manner, whenever the food service establishment is closed to the public.
h.
Establishments with outdoor seating with food and beverage service shall meet all health code and other applicable code requirements of restaurants.
i.
Any permanent or temporary structures associated with outdoor seating, including, but not limited to, awnings and covered roofs shall not encroach into the required building setback areas. Tables, chairs, umbrellas, fencing, screening and dividing materials shall not be located closer to the property line than two-thirds (⅔) of the required front, side or rear building setback. (See exceptions in subsection (6))
(4)
Limitations on use. Except for outdoor seating located in an inner court:
a.
All sales and service of food and beverages in an outdoor seating area are prohibited between the hours of 10:30 p.m. and 7:00 a.m., Sunday through Thursday, and between the hours of 11:00 p.m. and 7:00 a.m., Friday through Saturday.
b.
Outdoor seating areas shall be in compliance with the village's noise regulations.
(5)
General requirements. Outdoor seating which increases the total number of seats available at a food service establishment shall be considered an expansion of use. Such outdoor seating shall be included in any calculation of the total number of seats provided by the food service establishment, but not limited to, parking, restroom facilities and business taxes.
(6)
Special requirements for C-MU and C-3 zoning districts. In the C-MU and C-3 zoning districts only, the preceding requirements for outdoor seating are modified as follows:
a.
Outdoor seating may be provided on sidewalks that have been constructed on sidewalk easements that were required by this Code as long as this seating does not unduly restrict pedestrian movement. Outdoor seating may not be provided on sidewalks within the right-of-way of US Highway 1, Yacht Club Drive, Anchorage Drive, Lighthouse Drive, Ebbtide Drive, or Northlake Boulevard.
b.
Outdoor seating may be provided within build-to zones required by this Code.
c.
Outdoor seating may be provided on an area designated for parking and/or loading without providing additional parking spaces. However, permission for such outdoor seating would be on a provisional basis and would be subject to revocation as follows:
i.
Permission may be revoked by the community development director if there is evidence that the permission is contributing to spillover parking on nearby properties.
ii.
Permission would be automatically revoked if the code enforcement special magistrate issues an order confirming a violation of a parking-related provision of this Code.
R.
Formerly developed vacant lots.
(1)
Applicability. This section shall apply to all lots within the village where the principal structure has been demolished and no principal use currently exists on the property.
(2)
Ground treatment. Vacant lots regulated by this section shall be cleared of construction material and debris, shall be properly graded and shall be covered with sufficient ground treatment. Existing ground treatment may be used to meet the requirements of this section.
a.
Ground treatment may consist of any combination of living plants, such as grass, ground cover, shrubs, vines, hedges or trees and non-living landscape material such as rocks, pebbles, sand, mulch and decorative paving materials. Non-living landscape material shall be limited to a maximum of twenty (20) percent of the total lot area.
b.
Property owners are encouraged to adhere to xeriscape or "Florida Friendly" (as promulgated by the Florida Yards and Neighborhood Program) landscaping principles and utilize low-maintenance, drought-tolerant landscaping materials and practices.
c.
The clearing and planting must be completed within thirty (30) days of the completion of the demolition of the principal structure. Property owners may continue electrical service to vacant lots regulated by this section for the sole purpose of operating an irrigation system to irrigate living plant material. Electrical service for any other purpose shall be prohibited.
d.
The property owner shall ensure that the property adequately drains so as to alleviate standing water.
(3)
Foundations, driveways and accessory structures. Slab foundations and other structural features remaining from demolished structures must be removed from the lot. All accessory structures (including swimming pools), parking areas and driveways shall be removed from vacant lots, with the exception of seawalls, driveway aprons located within adjacent rights-of-way and irrigation systems. Swimming pools shall be removed or filled in accordance with all applicable building code requirements and state and local health department regulations.
(4)
Existing trees and vegetation. All existing native and non-invasive trees and palms shall be preserved to the maximum extent possible. All existing non-native and exotic species, as listed in the most current edition of the Florida Exotic Pest Plant Council's List of Invasive Plant Species, shall be removed from the lot.
(5)
Planting plan. Simultaneously with the application for a demolition permit, the lot owner shall submit a planting plan to the community development department indicating the method of ground treatment and identifying existing trees and palms to be preserved and non-native and exotic species to be removed. The department shall not issue the demolition permit until the planting plan has been submitted and approved.
(6)
Maintenance. The lot shall be maintained in accordance with the requirements of chapters 14 and 15 of the village Code of Ordinances. Maintenance shall terminate upon the commencement of active construction activities in accordance with a valid and active building permit. If construction activities cease for more than thirty (30) days or the building permit expires, a new planting plan shall be submitted and implemented.
(7)
Exemption.
a.
A lot owner shall be exempt from submitting a planting plan and demolishing the existing driveways, parking areas and accessory structures if the property will be redeveloped within one hundred and twenty (120) days of demolition, as evidenced by the submittal of an application for a building permit or other development approval at the time of demolition. The lot owner shall certify that the existing driveways, parking areas and accessory structures will be incorporated into the new construction plan or are necessary to facilitate future construction activities, whichever is applicable. Lot owners shall limit access to swimming pools remaining on vacant lots in accordance with the applicable building code requirements for new construction.
b.
The exemption shall remain in place for so long as the permit or approval remains active, provided that active construction activities commence within the one hundred and twenty-day period. In order to qualify for the exemption, the lot owner shall submit an affidavit stating that the above requirements shall be met at the time the application for the demolition permit is submitted.
c.
A property owner may apply for one extension of the exemption period for a period of time not to exceed sixty (60) days.
d.
In the event: (i) construction activities do not commence within the one hundred and twenty-day period; (ii) the permits or other approvals facilitating redevelopment of the property expire; or (iii) construction activities commence and then cease for a period of more than thirty (30) days, the property owner shall comply with all requirements of subsections (2) through (6) above within thirty (30) days.
(8)
Existing docks or piers. An existing dock or pier adjacent to a formerly developed vacant lot may remain subject to the following conditions:
a.
The use of the dock or pier shall be limited to one vessel;
b.
The dock or pier shall only be used for the personal enjoyment of the lot owner and shall not be rented or leased to any third party or used for any commercial purpose;
c.
No sewer or electrical services to the dock or pier shall be permitted;
d.
No live aboard vessels shall be permitted;
e.
The upland portion of the lot shall not be used for storage, parking or any other accessory use or structure until the principal use or primary structure is completed; and
f.
Access to the dock or pier may be restricted as provided in section 45-36(D-1) above.
(9)
Enforcement. Violations of this section shall be enforced as code enforcement violations in accordance with article VI of chapter 2 of the village Code of Ordinances.
S.
Additional regulations applicable to medical or dental offices or clinics.
(1)
Purpose. These regulations are enacted to discourage the misuse and abuse of narcotics and other controlled substances such as pain medications, and to address the impacts upon land uses that are associated with businesses that operate principally to dispense pain medications for chronic pain but without the services of typical medical offices that provide thorough on-site examinations, medical treatments or procedures and continued medical oversight. Such businesses have been determined to be associated with the excessive use of, addiction to, and subsequent illegal sales and distribution of controlled substances.
(2)
Applicability. This section applies to all medical or dental offices or clinics within the village.
(3)
On site dispensing of controlled substances. On-site dispensing of controlled substances that are identified in Schedules II, III or IV in Sections 893.03, 893.035 or 893.0356, Florida Statutes, is strictly prohibited, unless otherwise expressly permitted by statutory or general law. However, the following are exempt from this prohibition:
a.
A health care practitioner when administering a controlled substance directly to a patient if the amount of the controlled substance is only intended to treat the patient during that particular treatment session.
b.
A pharmacist or health care practitioner when administering a controlled substance to a patient or resident receiving care as a patient at a hospital, nursing home, ambulatory surgical center, hospice, or intermediate care facility for the developmentally disabled that is licensed by the State of Florida.
c.
A health care practitioner when administering a controlled substance in the emergency room of a licensed hospital.
d.
A health care practitioner when administering or dispensing a controlled substance to a person under the age of sixteen (16).
e.
A health care practitioner when dispensing a one-time, seventy-two (72) hour emergency re-supply of a controlled substance to a patient.
(4)
Acknowledgment of regulations. The health care practitioner responsible for the operation or supervision of any medical or dental office or clinic shall execute an affidavit acknowledging the regulations set forth in subsection (3) above prior to payment of the required business tax, and annually thereafter upon renewal of same prior the issuance of a business tax receipt. Failure or refusal to execute the required affidavit shall constitute prima facie evidence that the subject medical or dental office or clinic is operating in violation of the code of ordinances, which may result in code enforcement action, revocation of business tax receipt, and/or any other action permitted by law.
(5)
Applicability to existing uses. The prohibition set forth in subsection (3) above shall not apply to existing pain management clinics, as defined by Chapters 458 and 459, Florida Statutes, operating as of February 11, 2010, provided that such establishments comply with all other applicable laws, rules and regulations, including statutory registration requirements.
T.
Additional regulations applicable to pharmacies and drug stores.
(1)
Purpose. These regulations are enacted to discourage the misuse and abuse of narcotics and other controlled substances such as pain medications, and to address the impacts upon land uses that are associated with pharmacies affiliated with medical or dental offices or clinics that operate principally to dispense pain medications. Such businesses have been determined to be associated with the excessive use of, addiction to, and subsequent illegal sales and distribution of controlled substances.
(2)
Applicability. This section applies to all pharmacies within the village, including those located within drug stores.
(3)
Limitation. No more than fifteen percent (15%) of the total number of prescriptions sold within a thirty (30) day period can be derived from the sale of Schedule II controlled substances as listed in Section 893.03, Florida Statutes. All pharmacies, including those located within drug stores, shall be staffed by a state licensed pharmacist who shall be present during all hours the pharmacy is open for business. This restriction shall not apply to a pharmacy operating as an accessory use to a facility licensed under Chapter 395, Florida Statutes (e.g. hospital).
(4)
Acknowledgment of regulations. The owner or operator of a pharmacy or drug store shall execute an affidavit acknowledging the regulations set forth in subsection (3) above prior to payment of the required business tax, and annually thereafter upon renewal of same prior the issuance of a business tax receipt. Failure or refusal to execute the required affidavit shall constitute prima facie evidence that the subject pharmacy or drug store is operating in violation of the code of ordinances, which may result in code enforcement action, revocation of business tax receipt, and/or any other action permitted by law.
U.
Use of portable storage containers and roll-off dumpsters in all zoning districts.
(1)
Purpose. The purpose of this subsection is to regulate the use of:
a.
Shipping containers and all types and brands of portable or mobile storage containers, including portable on demand storage containers, also known as "PODS" (collectively referred to as "portable storage containers"); and
b.
Roll-off construction dumpsters (collectively referred to as "roll-off dumpsters").
(2)
Applicability. These regulations shall apply to all properties located within the village.
(3)
Permit required.
a.
No portable storage container or construction dumpster shall be located on any property for more than seven (7) consecutive calendar days, unless the occupant of the property first obtains a permit from the community development department.
b.
Applicants shall complete and submit a permit application on a form prescribed by the village and pay a permit fee as established by resolution of the village council, provided, however, that the village shall not require a permit fee for a roll-off dumpster where the occupant possesses an active building permit for improvements to the property on which the roll-off dumpster is located.
c.
The community development department may require the applicant to submit documentary evidence to demonstrate that the applicant is either the owner or lessee of the property upon which the portable storage container or roll-off dumpster will be located. Such evidence may include, but is not limited to, a deed or lease agreement.
(4)
Limitations on size and quantity of permitted portable storage containers and roll-off dumpsters.
a.
The village shall not issue a permit for more than one standard size portable storage container, eight (8) feet in height by eight (8) feet in width by sixteen (16) feet in length, on any property.
b.
The village shall not issue a permit for more than one roll-off dumpster, not to exceed four and one-half (4½) feet in height by eight (8) feet in width by twenty-two (22) feet in length (twenty (20) yard capacity), for any property.
(5)
Length of time.
a.
A permit for the placement of a portable storage container or roll-off dumpster shall be valid of a period of thirty (30) consecutive days from the date of permit issuance, provided, however, that a permit for a roll-off dumpster shall be valid for up to one hundred and eighty (180) consecutive days where the occupant possesses an active building permit for improvements to the property on which the roll-off dumpster is located.
b.
In the event of exceptional circumstances, the permit holder for a portable storage container may request an extension for an additional thirty (30) consecutive days. Any request for an extension of time must be in writing, and must include a written justification statement demonstrating "good cause" as to why the initial thirty (30) day period should be extended. The decision to grant or deny the request for an extension of time shall be within the sole discretion of the village, and the village shall charge an additional fee for any extension of time.
c.
If ongoing construction continues on the property past one hundred and eighty (180) consecutive days, the permit holder for a roll-off dumpster may request one or more extensions of time of up to ninety (90) consecutive days each. For the purpose of this section, ongoing construction means construction-related activities are being carried out on a continuing basis pursuant to a valid permit, with regularly scheduled successful inspections. The community development director may revoke a permit at any time if the director determines that ongoing construction is no longer occurring on the property. The property owner may challenge the director's revocation of a permit or any extension thereof by requesting a hearing before the code enforcement special magistrate.
d.
Not more than one permit, per calendar year, for a portable storage container or a roll-off dumpster shall be issued by the village to the same occupant of any property, or in the case of multi-family residential property with more than one unit, the same occupant of any unit.
(6)
Additional requirements.
a.
No storage container or roll-off dumpster shall exceed the height of the roofline of the principal building or structure located on the property.
b.
No portable storage container or roll-off dumpster shall be located within a utility easement, drainage easement, right-of-way, front yard area, alley right-of-way or street right-of-way. Notwithstanding the foregoing, a portable storage container or roll-off dumpster shall be placed on the driveway or designated parking area in the R-1 or R-2 zoning districts unless otherwise approved by the community development department.
c.
No portable storage container or roll-off dumpster shall be stored within a required side yard setback between a building and an adjacent street or property line. For non-residential properties, no portable storage container or roll-off dumpster shall be located in any required landscape or buffer area.
d.
No portable storage container or roll-off dumpster shall contain any signage other then the name, address and telephone number of the person or firm engaged in the business of renting or providing the container or dumpster.
e.
No flammable or hazardous materials may be placed, stored or kept in any portable storage container or roll-off dumpster.
f.
The portable storage container or roll-off dumpster must be owned or leased by the occupant of the property and may not be used for living or sleeping purposes or for any use other than storage or disposal of construction debris.
(7)
Severe weather conditions.
a.
Upon the issuance of a tropical storm watch and/or a hurricane watch by the National Weather Service, the occupant of the property on which a portable storage container or roll-off dumpster is located shall use every reasonable and best effort to remove, or to arrange for the removal of, the portable storage container or roll-off dumpster from the property.
b.
In the event removal is not possible, the storage container or the roll-off dumpster and its contents, shall be secured against windloads of up to one hundred and fifty (150) miles per hour.
c.
The occupant of a property upon which a portable storage container or roll-off dumpster is located shall be subject to civil liability and/or code enforcement action for damages and/or code violations caused by an unsecured portable storage container or roll-off dumpster and its contents.
V.
Time-share units and fractional ownership. Time-share units and the fractional ownership of any parcel of real property shall be prohibited in all residential zoning districts. Such prohibition shall not include community residences or vacation rentals as defined and regulated in this chapter.
(Ord. No. 209-70, § 1; Ord. No. 2-71, § 1; Ord. No. 1-72, § 1; Ord. No. 11-74, § 1; Ord. No. 11-75, § 1, 9-11-75; Ord. No. 2-76, § 1, 2-26-76; Ord. No. 3-77, § 1, 2-24-77; Ord. No. 15-85, § 1, 9-12-85; Ord. No. 21-90, § 2, 6-28-90; Ord. No. 7-91, § 1, 3-14-91; Ord. No. 20-95, § 1, 7-27-95; Ord. No. 34-96, § 1, 8-22-96; Ord. No. 3-97, § 1, 1-9-97; Ord. No. 12-97, §§ 3, 4, 2-27-97; Ord. No. 2-98, § 1, 1-8-98; Ord. No. 6-99, § 1, 1-28-99; Ord. No. 03-2002, § 1, 2, 2-14-02; Ord. No. 04-2005, § 1, 2-10-05; Ord. No. 2006-28, § 11, 12-14-06; Ord. No. 2010-21, § 5, 11-18-10; Ord. No. 2011-02, §§ 3, 4, 2-10-11; Ord. No. 2011-09, § 2, 5-26-11; Ord. No. 2014-01, § 2, 1-23-14; Ord. No. 2015-20, § 2, 11-12-15; Ord. No. 2017-23, § 2, 12-14-17; Ord. No. 2019-03, § 2, 6-27-19; Ord. No. 2019-06, § 4, 7-11-19; Ord. No. 2020-06, § 24, 9-24-20; Ord. No. 2021-15, § 2, 9-8-21; Ord. No. 2022-01, § 3, 1-13-22)
A.
Purpose. The historic site overlay district is used to impose special development restrictions on identified areas. The locations of this overlay district are established by the Village based on the need for special protective measures at those locations. The historic site overlay district imposes different standards than those that would otherwise apply.
B.
Definitions. [For purposes of this section, the following words shall have the meaning ascribed to them in this subsection:]
Building. A structure created to shelter any form of human activity. This may refer to a house, barn, garage, church, hotel, or similar structure. Buildings may refer to a historically or architecturally related complex, such as municipal buildings, or a house and barn. Parking lots and garages are hereby deemed to be "buildings."
Cultural resource. A site, object, structure, building or district listed in the Village's register of historic sites.
Demolition. The tearing down or razing of twenty-five (25) percent or more of a structure's external walls.
District. A geographically definable area possessing a significant concentration, linkage, or continuity of sites, buildings, structures, objects, or areas, which are united historically or aesthetically by plan or physical development. A district may be comprised of individual resources which are separated geographically but are linked by association or history.
Object. A material thing of functional, aesthetic, cultural, historical or scientific value that may be, by nature of design, movable, yet related to a specific setting or environment.
Ordinary maintenance. Work which does not require a construction permit and that is done to repair damage or to prevent deterioration or decay of a building or structure or part thereof as nearly as practicable to its condition prior to the damage, deterioration, or decay.
Original appearance. That appearance (except for color) which, to the satisfaction of the village council, closely resembles the appearances of either:
(1)
The feature on the building as it was originally built or was likely to have been built, or
(2)
The feature on the building as it presently exists so long as the present appearance is appropriate, in the opinion of the village council, to the style and materials of the building.
C.
Creation of local register of historic sites. A local register of historic sites is hereby created as a means of identifying and classifying various sites, buildings, structures, objects and districts as historic and/or architecturally significant. The local register will be kept by the director of community development.
D.
Initiation of placement on local register. Placement of sites, buildings, structures, objects or districts on the local register may be initiated by the village council. In addition, placement may be initiated by the owner of the site, building, structure, object or area; or, in the case of a district, by the owner of a site, building, structure, object or area within the proposed district. By adoption of this ordinance, those sites within the Village of North Palm Beach that have been classified as a "Florida historic site" by the Division of Archives, History and Records Management, Florida Department of State, are hereby placed on the local register.
E.
Placement on local register. The following procedure shall be followed for placement of sites, buildings, structures, objects, areas and districts on the local register:
1.
A nomination form, available from the department of community development, shall be completed by the applicant and returned to the department.
2.
Upon receipt of a completed nomination form, including necessary documentation, the director shall place the nomination on the agenda of the next regularly scheduled meeting of the village planning commission. If the next regularly scheduled meeting of the planning commission is too close at hand to allow for the required notice to be given, the nomination shall be placed on the agenda of the succeeding regularly scheduled meeting.
3.
Adequate notice of the planning commission's consideration of the nomination shall be provided to the public at large, and to the owner(s) of the nominated property(ies), at least fifteen (15) days in advance of the meeting at which the nomination will be considered by the council.
4.
The planning commission shall, within thirty (30) days from the date of the meeting at which the nomination is first on the planning commission agenda, review the nomination and write a recommendation thereon for consideration by the village council. The recommendation shall include specific findings and conclusions as to why the nomination does or does not meet the appropriate criteria for listing on the local register. The recommendation shall also include any owner's objection to the listing. If the nomination is of a district, the recommendation shall also clearly specify, through the use of maps, lists or other means, those buildings, objects or structures which are classified as contributing to the historical significance of the district.
5.
Upon receipt of the recommendation from the planning commission to the village council, the nomination shall be placed on the agenda of the next regularly scheduled workshop of the village council.
6.
Following the village council workshop consideration, adequate notice of the village council's consideration of the nomination at a public meeting shall be provided to the public at large (advertisement for public hearing), and to the owner(s) of the nominated property or properties, at least fifteen (15) days in advance of the meeting at which the nomination will be considered by the council.
7.
The village council shall, within ninety (90) days from the date of the meeting at which nomination is first on the council's agenda, review the nomination and vote to accept or reject the nomination. The decision shall include specific findings and conclusions as to why this nomination does or does not meet the appropriate criteria for listing on the local register. The decision shall also include any owner's objection to the listing. If the nomination is of a district, the decision shall also clearly specify, through the use of maps, lists, or other means, those grounds, buildings, objects or structures which are classified as contributing to the historical significance of the district. The nomination form and the council's recommendation shall be sent to the planning commission. The nomination shall then be handled as any other rezoning/amendment to the land use element.
F.
Criteria for listing on local register.
1.
A site, building or district must meet the following criteria before it may [be] listed on the local register:
a.
The site, building or district possesses integrity of location, design setting, materials, workmanship, feeling and association; and
b.
The site, building or district is associated with events that are significant to local, state or national history; or the district site, building, structure or object embodies the distinctive characteristics of a type, period or method of construction, or represents the work of a master, or possesses high artistic values, or represents a significant and distinguishable entity whose components may lack individual distinction.
2.
A site or building located in a local register of historic sites district shall be designated as contributing to that district if it meets the following criteria:
a.
The property is one which, by its location, design, setting, materials, workmanship, feeling and association adds to the district's sense of time and place and historical development.
b.
A property should not be considered contributing if the property's integrity of location, design, setting, materials, workmanship, feeling and association have been so altered that the overall integrity of the property has been irretrievably lost.
c.
Structures that have been built within the past fifty (50) years shall not be considered to contribute to the significance of a district, unless a strong justification concerning their historical or architectural merit is given or the historical attributes of the district are considered to be less than fifty (50) years old.
G.
Effect of listing on local register.
1.
The department may issue an official certificate of historic significance to the owner of properties listed individually on the local register or judged as contributing to the character of a district listed on the local register. The director of public services is authorized to issue and place official signs denoting the geographic boundaries of each district listed on the local register.
2.
Structures and buildings listed individually on the local register or judged as contributing to the character of a district listed on the local register shall be deemed historic and entitled to modified enforcement of the Standard Building Code as provided by Chapter 1, section 101.5 of the Standard Building Code Congress International, Inc.
3.
No demolition, alteration, relocation or construction activities may take place except as provided below.
H.
Certificate of appropriateness.
1.
When required.
a.
A certificate of appropriateness must be obtained from the planning commission before making certain alterations, described below as regulated work items, contributing structures and structures listed individually on the local register.
b.
For each of the regulated work items listed below, the following applies.
i.
Ordinary maintenance. If the work constitutes "ordinary maintenance" as defined in this code, the work may be done without a certificate of appropriateness.
ii.
Staff approval. If the work is not "ordinary maintenance," but will result in the "original appearance" as defined in this code, the certificate of appropriateness may be issued by the director of community development.
iii.
Planning commission approval. If the work is not "ordinary maintenance" and will not result in the "original appearance," a certificate of appropriateness must be obtained from the planning commission before the work may be done.
c.
The following are regulated work items:
i.
Installation or removal of metal awnings or metal canopies.
ii.
Installation of all decks above the first-floor level and/or on the front of the structure.
iii.
Installation of an exterior door or door frame, or the infill of an existing exterior door opening.
iv.
Installation or removal of any exterior wall, including the enclosure of any porch or other outdoor area with any material other than insect screening.
v.
The installation or relocation of wood, chain-link, masonry (garden walls) or wrought iron fencing, or the removal of masonry (garden walls) or wrought iron fencing.
vi.
The installation or removal of all fire escapes, exterior stairs or ramps for the handicapped.
vii.
Painting unpainted masonry including stone, brick, terra-cotta and concrete.
viii.
Installation or removal of railings or other wood, wrought iron or masonry detailing.
ix.
Abrasive cleaning of exterior walls.
x.
Installation of new roofing materials, or removal of existing roofing materials.
xi.
Installation or removal of security grilles, except that in no case shall permission to install such grilles be completely denied.
xii.
Installation of new exterior siding materials, or removal of existing exterior siding materials.
xiii.
Installation or removal of exterior skylights.
xiv.
Installation of exterior screen windows or exterior screen doors.
xv.
Installation of an exterior window or window frame or the infill of an existing exterior window opening.
d.
A certificate of appropriateness must be obtained from the planning commission to erect a new building or parking lot within a district listed on the local register.
e.
A certificate of appropriateness must be obtained from the planning commission to demolish a building, structure or object listed individually on the local register, or designated as contributing to a district listed on the local register.
f.
A certificate of appropriateness must be obtained from the planning commission to relocate a building, structure, or object listed individually on the local register, or designated as contributing to a district listed on the local register.
2.
Criteria for issuing.
a.
The decision on all certificates of appropriateness, except those for demolition, shall be guided by the secretary of the interior's standards for rehabilitation and guidelines for rehabilitating historic buildings and the following visual compatibility standards:
i.
Height. Height shall be visually compatible with adjacent buildings.
ii.
Proportion of building, structure or object's front facade. The width of building, structure or object to the height of the front elevation shall be visually compatible to buildings and places to which it is visually related.
iii.
Proportion of openings within the facility. The relationship of the width of the windows in a building, structure, or object shall be visually compatible with buildings and places to which the building, structure or object is visually related.
iv.
Rhythm of solids to voids in front facades. The relationship of solids to voids in the front facade of a building, structure or object shall be visually compatible with buildings and places to which it is visually related.
v.
Rhythm of buildings, structures or objects on streets. The relationship of the buildings, structures or objects to open space between it and adjoining buildings and places shall be visually compatible to the buildings and places to which it is visually related.
vi.
Rhythm of entrance and/or porch projection. The relationship of entrances and projections to sidewalks of a building, structure or object shall be visually compatible to the buildings and places to which it is visually related.
vii.
Roof shapes. The roof shape of the building, structure or object shall be visually compatible with the buildings to which it is visually related.
viii.
Wall of continuity. Appurtenances of a building, structure or object such as walls, fences, [or] landscape masses shall, if necessary, form cohesive walls of enclosure along a street, to insure visual compatibility of the building, structure, or object to the building and places to which it is visually related.
ix.
Scale of a building. The size of the building, structure or object, the building mass of the building, structure or object in relation to open space, the windows, door openings, porches and balconies shall be visually compatible with the buildings and places to which it is visually related.
x.
Directional expression of front elevation. A building, structure, or object shall be visually compatible with the buildings and places to which it is visually related in its directional character.
b.
In addition to the guidelines provided in paragraph (a) above, issuance of certificates of appropriateness for relocations shall be guided by the following factors:
i.
The historic character and aesthetic interest the building, structure or object contributes to its present setting;
ii.
Whether there are definite plans for the area to be vacated and the effect of those plans on the character of the surrounding area;
iii.
Whether the building, structure or object can be moved without significant damage to its physical integrity; and
iv.
Whether the proposed relocation area is compatible with the historical and architectural character of the building, structure or object.
c.
Issuance of certificates of appropriateness for demolitions shall be guided by the following factors:
i.
The historic or architectural significance of the building, structure or object;
ii.
The importance of the building, structure or object to the ambience of a district;
iii.
The difficulty or the impossibility of reproducing such a building, structure or object because of its design, texture, material, detail or unique location;
iv.
Whether the building, structure or object is one (1) of the last remaining examples of its kind in the neighborhood, the county, or the region;
v.
Whether there are definite plans for reuse of the property if the proposed demolition is carried out, and the effect of those plans on the character of the surrounding area;
vi.
Whether reasonable measures can be taken to save the building, structure or object from collapse; and
vii.
Whether the building, structure or object is capable of earning reasonable economic return on its value.
3.
Procedure.
a.
A person wishing to undertake any of the actions requiring a certificate of appropriateness shall file an application for a certificate of appropriateness, and supporting documents, with the director.
b.
The applicant shall confer with the director concerning the nature of the proposed action and requirements related to it. The director shall advise the applicant of the nature and detail of the plans, designs, photographs, reports or other exhibits required to be submitted with the application. Such advice shall not preclude the planning commission from requiring additional material prior to making its determination in the case. Following the conference with the director, a preapplication conference shall be held with the planning commission if requested by the applicant.
c.
Upon receipt of a completed application and all required submittals and fees, the director shall place the application on the next regularly scheduled meeting of the planning commission allowing for notice as required herein. Applications for certificates of appropriateness may be heard at specially called meetings of the planning commission provided all notice requirements are met. Upon mutual agreement between the applicant and the director, the application may be set for hearing at a meeting later than the next regularly scheduled meeting.
d.
At least fifteen (15) days, but not more than thirty (30) days, prior to the meeting at which the application is to be heard, the director shall give the following notice:
i.
Written notice of the time and place of the meeting shall be sent to the applicant and all persons or organizations filing written requests for notification with the department.
ii.
One (1) advertised notice in a newspaper of general circulation.
e.
The hearing shall be held at the time and place indicated in the notice. The decision of the planning commission shall be made at the hearing.
f.
The planning commission shall use the criteria set forth in paragraph F of this section to review the completed application and accompanying submittals. After completing the review of the application and fulfilling the public notice and hearing requirements set forth above, the planning commission shall take one of the following actions:
i.
Grant the certificate of appropriateness with an immediate effective date;
ii.
Grant the certificate of appropriateness with special modifications and conditions; or
iii.
Deny the certificate of appropriateness.
g.
The planning commission shall make written findings and conclusions that specifically relate the criteria for granting certificates of appropriateness. All parties shall be given the opportunity to present evidence through documents, exhibits, testimony, or other means. All parties shall be given the opportunity to rebut evidence through cross-examination or other means.
h.
The department shall record and keep records of all meetings. The records shall include the vote, absence, or abstention of each member upon each question, all official actions of the planning commission, and the findings and conclusions of the planning commission. All records shall be filed in the department.
i.
Any person aggrieved by a decision reached by the planning commission may appeal the decision to the village council.
j.
No work for which a certificate of appropriateness is required may be undertaken unless a certificate of appropriateness authorizing the work is conspicuously posted on the property where the work is to be performed.
(Ord. No. 24-90, § 1, 6-28-90)
Cross reference— Alcoholic beverages, Ch. 3.
A.
Intent. The purpose and intent of the I-1 light industrial district is to implement the Light Industrial/Business future land use category, as established in the Village of North Palm Beach Comprehensive Plan. The I-1 district provides areas in appropriate locations for certain types of businesses, light manufacturing, processing or fabrication of non-objectionable products not involving the use of material, processes or machinery likely to cause undesirable effects upon the environment or on nearby or adjacent residential or commercial properties.
B.
Definitions. The following definitions shall be used for the purposes of the I-1 light industrial district:
Agriculture, Research and Development: The use of land or buildings for agriculture research and the cultivation of new agricultural products.
Art Studio: An establishment used in the practice of artistic pursuits, including, but not limited to, instruction, for fine arts, music, photography, painting, sculpture, drama, speech, and dance.
Assisted Living Facility: A facility licensed by the agency for health care administration which provides housing, meals and personal care and services to adults for a period exceeding twenty-four (24) hours, as defined in F.S. § 429.02, as amended.
Auto Paint and Body Shop: An establishment engaged in the painting of motor vehicles or performance of major external repairs of a non-mechanical nature.
Auto Service Station: An establishment primarily engaged in the retail sale of gasoline or motor fuels. An auto service station may include accessory activities such as the sale of vehicle accessories or supplies, the lubrication of motor vehicles, the minor adjustment or minor repair of motor vehicles, the sale of convenience food items, or an accessory restaurant.
Broadcast Studio: An establishment primarily engaged in broadcasting visual or aural programs by radio or television to the public including, but not limited to, providing cable and other television services, producing recorded television or radio program materials, and broadcasting commercial, religious, educational and education-based television and radio programming.
Building Supplies: An establishment engaged in the fabrication and/or sale of products to contractors for the construction, maintenance, repair and improvement of real property.
Butcher Shop: An establishment dealing in the dressing and/or retail or wholesale of meat, poultry or fish.
Car Wash: A permanent establishment engaged in washing or detailing motor vehicles, which may involve production line methods with a conveyor, blower, or other mechanical devices, and which may employ some hand labor. Detailing includes hand washing and waxing, striping, and interior cleaning.
Catering Service: An establishment where food and beverages are prepared and delivered for consumption off the premises. A catering service may also provide personnel, serving equipment, and decorations.
Chipping and Mulching: An establishment using equipment designed to cut tree limbs, brush or wood construction debris into small pieces for use as mulch.
Commercial Greenhouse: An establishment having roofs and walls made of rolled plastic or similar materials used for the indoor cultivation of plants, which may include hydroponic farming.
Communications Panel Antennas, Commercial: A tower with the principal use of facilitating transmissions for AM/FM radio, television, microwave and cellular telephone and includes transmission towers, antennas and accessory equipment and structures.
Community Vegetable Garden: A plot of land used primarily as a vegetable garden, which is cultivated and harvested by a group of residents from the surrounding area.
Data and Information Processing: An establishment used for business offices of an industrial nature, including, but not limited to, corporate centers, mail processing and telemarketing centers. Such uses are generally not frequented by the general public.
Day care center: An establishment that provides care, protection and supervision for children when licensed by the Palm Beach County Health Department, or adults when licensed by the Agency for Health Care Administration, not related by blood or marriage or foster care responsibility, for a period of less than twenty-four (24) hours per day. Day care does not include nighttime or overnight care.
Dispatching Office: An establishment providing services off-site to households and businesses using land-based communications. Typical uses include janitorial services, pest control services, and taxi, limousine, and ambulance services.
Dog Daycare: An establishment providing daytime care and training for domestic dogs.
Farmers Market: An establishment providing the wholesale sale of farm produce.
Film Production Studio: The use of a lot or building for the production of films, videos or other recordings for exhibition or sale.
Fitness Center: An enclosed building or structure containing multi-use facilities for conducting recreational activities such as aerobic exercises, weight lifting, running, swimming, racquetball, handball, and squash. This use shall also include instructional studios, such as dance studios and karate schools. A fitness center may also include the following customary accessory activities as long as they are intended for the use of the members of the center and not for the general public: babysitting, food service, and the service of alcoholic beverages for on premises consumption.
Food Service establishment: Any building, vehicle, place or structure, or any room or division in a building, vehicle, place or structure where food is prepared, served, or sold for immediate consumption on or in the vicinity of the premises; called for or taken out by customers; or prepared prior to being delivered to another location for consumption.
Food truck: A mobile food dispensing vehicle that is self-propelled and capable of being moved from place to place and where food and beverages are consumed off-premises.
Governmental Services: Buildings or facilities owned or operated by a government entity and providing services for the public. Typical uses include administrative offices for government agencies, public libraries, police stations, public utilities and public works facilities.
Instructional studio: A commercial establishment providing training or instruction for competition in martial arts, exercise, gymnastics, or related/similar activities.
Kennel (Commercial): A commercial establishment, including any building or land, used for the training, boarding or grooming of domesticated animals (e.g. dogs and cats) for profit and not necessarily owned by the occupants of the premises.
Landscape Service: An establishment engaged in the provision of landscape maintenance or installation services, such as lawn mowing, tree, shrub or hedge trimming, leaf blowing, landscape design, and landscape installation.
Laundry Services: An establishment that provides washing, drying, dry-cleaning, or ironing machines for hire to be used by customers on the premises, or that is engaged in providing laundry and dry cleaning services with customer drop-off and pick-up.
Machine or Welding Shop: A workshop where machines, machine parts, or other metal products are fabricated. Typical uses include machine shops, welding shops and sheet metal shops.
Manufacturing and Processing (Light): An establishment engaged in the manufacture, predominately from previously prepared materials, of finished products or parts, including processing, fabrication, assembly, treatment and packaging of such products, and incidental storage, sales and distribution of such products, but excluding heavy industrial processing. Typical uses include factories, large-scale production, wholesale distribution, publishing and food processing.
Medical and Dental Laboratory: A facility for the construction or repair of prosthetic devices or medical testing exclusively on the written order of a licensed member of the dental or medical profession and not for the general public.
Medical or Dental Office: An establishment where patients, who are not lodged overnight, are admitted for examination or treatment by persons practicing any form of healing or health-building services whether such persons be medical doctors, chiropractors, osteopaths, podiatrists, naturopaths, optometrists, dentists, or any such profession, the practice of which is lawful in the State of Florida. A pain management clinic shall not be considered a medical or dental office.
Medical Marijuana Treatment Center: A facility licensed by the Florida Department of Health to acquire, cultivate, possess, process (including but not limited to development of related products such as food, tinctures, aerosols, oils or ointments), transfer, transport, store, or administer marijuana, products containing marijuana, related supplies, or educational materials to qualifying patients or their caregivers, as authorized by state law. A facility which provides retail sales or dispensing of marijuana shall not be classified as a medical marijuana treatment center under this chapter, but shall be classified as a medical marijuana treatment center dispensing facility.
Medical Marijuana Treatment Center Dispensing Facility: A retail facility established by a licensed medical marijuana treatment center that sells or dispenses marijuana, products containing marijuana, or related supplies, but does not engage in any other activity related to the preparation, wholesale storage, distribution, transfer, cultivation, or processing of any form of marijuana, marijuana products, or related supplies.
Monument Sales, Retail: An establishment primarily engaged in the retail sale of monuments, such as headstones, footstones, markers, statues, obelisks, cornerstones, gargoyles and ledges, for placement on graves, including indoor or outdoor storage.
Nursery, Retail or Wholesale: An establishment offering the wholesale or retail sale of horticultural specialties such as flowers, shrubs, sod, trees, mulch and accessory hardscape materials, such as decorative stones, intended for ornamental or landscaping purposes.
Office, Business or Professional: An establishment providing executive, management, administrative, or professional services, but not involving medical or dental services or the sale of merchandise, except as an incidental uses. Typical uses include property and financial management firms, employment agencies (other than day labor), travel agencies, advertising agencies, secretarial and telephone services, contract post office; professional or consulting services in the fields of law, architecture, design, engineering, accounting and similar professions; and business offices of private companies, utility companies, public agencies, and trade associations.
Park, Passive: A public or private outdoor recreation area relying on a natural or man-made resource base and developed with a low intensity of impact on the land. Typical uses include trail systems, wildlife management and demonstration areas for historical, cultural, scientific, educational or other purposes that relate to the natural qualities of the area, and support facilities for such activities.
Parking Lot or Parking Garage, Commercial: A lot used for temporary parking or storage for motor vehicles as a principal use for a fee.
Place of Worship: A sanctuary which may include a retreat, convent, seminary or other similar use, owned or operated by a tax-exempt religious group that is used periodically, primarily or exclusively for religious worship, activities and related services.
Printing and Copying Services: An establishment engaged in retail photocopy, reproduction, or blueprinting services.
Repair and Maintenance, General: An establishment engaged in the repair and maintenance of motor vehicles or other heavy equipment or machinery, including automobiles, boats, motorcycles, personal watercraft and trucks, excluding paint and body work. Typical uses include vehicle repair garages, tune-up stations, glass shops, quick-lube, and muffler shops.
Repair Services, Limited: An establishment engaged in the repair of personal apparel or household appliances, furniture, and similar items, excluding repair of motor vehicles. Typical uses include apparel repair and alterations, small appliance repair, small motor repair (including golf carts, mopeds and lawn mowers), bicycle repair, clock and watch repair, and shoe repair shops.
Residential substance abuse treatment. An establishment that includes the following licensed providers or facilities as specifically listed in F.S. § 397.311(18), providing overnight services: (a) day or night treatment with community housing; (b) detoxification services; (c) medication-assisted treatment for opiate addition; (d) outpatient treatment and intensive outpatient treatment; (e) additions receiving facility; (f) intensive inpatient treatment facility; and (g) residential treatment facility. Residential substance abuse treatment providers may also provide outpatient substance abuse treatment services.
Restaurant, fast food: An establishment equipped to sell food and beverages by one of (1) the following methods: drive-through sales to patrons in automobiles for take-out who place orders through a window or remote transmission device; or sales to patrons for take-out or dining in, that includes three (3) or more of the following: food or beverage choices are advertised on a menu board; countertop sales where payment is made prior to consumption; disposable containers and utensil; limited service dining facilities with no hostess or waiters; and self-service or prepackaged condiments.
Restaurant, take out: An establishment where food and beverages are served to be consumed off-premises.
Security or Caretaker Quarters: An accessory residence used by a caretaker or security guard actively engaged in providing security, custodial or managerial services upon the premises.
Self-Service Storage, Limited Access: A facility consisting of individual, self-contained units that are leased for the storage of business or personal goods.
Transportation Facility: A facility for loading, unloading, and interchange of passengers, baggage, and freight or package express between modes of transportation. Typical uses include bus terminals, railroad stations and yards, and major mail-processing centers.
Transportation Transfer Facility (Distribution): An establishment providing for the transfer of transportation or other motorized vehicles, but not involving vehicle sales or rental (retail or wholesale). Typical uses include the transfer of automobiles, trucks, heavy equipment, or other motorized vehicles prior to distribution to retail dealers.
Shade House: A temporary screen enclosure used to protect plants from insects, heat and exposure to the sun.
Towing Service, No Storage: An establishment engaged in tow truck and towing services, including dispatching, with no outdoor storage of vehicles, sales or repairing or salvage activity.
Veterinary Clinic: An establishment engaged in providing medical care, treatment and temporary boarding for animals.
Vocational School: An establishment offering regularly scheduled instruction in technical, commercial, or trade skills such as business, real estate, building and construction trades, electronics, computer programming and technology, automotive or aircraft mechanics and technology, or other type of vocational instruction.
Warehouse: A building used for the storage of raw materials, equipment, or products. Typical uses include moving companies, cold storage, and dead storage facilities, but exclude self-service storage facilities.
Wholesaling, General: An establishment engaged in the display, maintaining inventories of goods, storage, distribution and sale of goods to other firms for resale or supplying goods to various trades, such as landscapers, construction contractors, institutions, industries, or professional businesses. In addition to selling, wholesale establishments sort and grade goods in large lots, break bulk and redistribute in smaller lots, delivery and refrigeration storage, but excluding vehicle sales, wholesale greenhouses or nurseries, wholesale of gas and fuel, and wholesale building supplies.
C.
Uses permitted. Within any I-1 light industrial district, a building, structure, land or water shall not be used except for one (1) or more of the following uses:
Key:
P — Permitted by right.
SE — Permitted subject to special exception approval per Section 45-16.2.
D.
Supplemental use regulations for select permitted or special exception uses. Permitted or special exception uses in the I-1 district shall be subject to the following conditions.
1.
Assisted living facility: The following shall apply:
a.
Assisted living facilities shall be approved as a planned unit development.
b.
Each residential living area containing one (1) bed shall have a minimum floor area of one hundred fifty (150) square feet. An additional one hundred (100) square feet of floor area shall be required for each additional bed provided within the same residential living area.
c.
The maximum number of beds allowed in an assisted living facility shall be determined by multiplying the gross acreage of the site by forty-seven and twenty-eight-hundredths (47.28) beds per acre.
2.
Auto paint and body shop: All activity, except detailing and car washing shall be conducted within an enclosed structure. Use of outdoor lifts, jacks, paint booths and similar equipment is prohibited.
3.
Building supplies: Limited retail sales of lumber and similar products to consumers may be conducted only as an accessory use to the primary wholesale use.
4.
Butcher shop: The following shall apply:
a.
Storage and disposal: Outdoor storage or disposal of waste or byproducts is not permitted.
b.
Slaughtering: Slaughtering, rendering and dressing shall be prohibited.
5.
Catering Service: The use shall be subject to the following:
a.
Catering shall be allowed as an accessory use to a restaurant.
b.
The use of more than three (3) delivery vehicles shall require special exception approval.
6.
Car wash: A car wash shall be allowed to utilize one (1) canopy which may be located in the rear yard with a minimum five-foot setback, provided that it is not adjacent to a residential use.
7.
Chipping and mulching:
a.
Lot size: A minimum of five (5) acres.
b.
Setback: A minimum of five hundred (500) feet from any property line abutting a residential district.
c.
Accessory uses: Potting soil manufacturing may be allowed as an accessory use to chipping and mulching.
d.
Access: Access shall be restricted to specific entrances with gates that can be locked and that carry official notice that only authorized persons are allowed on the site.
8.
Communications panel antennas: Communications panel antennas may be allowed subject to Section 45-21.
9.
Community vegetable garden:
a.
Accessory structures: Accessory structures shall be limited to 400 square feet.
b.
Spraying: Aerial application of fertilizer or pesticides is prohibited.
c.
Parking: Overnight parking shall be prohibited.
d.
Loading: All loading and unloading activities shall be restricted to the site and shall not encroach into any setbacks.
e.
Storage: Outdoor storage is prohibited. The storage of all accessory equipment or products shall be contained within an accessory structure.
10.
Daycare center: The use shall be subject to the following:
a.
Day care does not include nighttime care (after 8:00 p.m.) or overnight care.
b.
Limited day care (6—20 children or adults) may be permitted as an accessory use to a place of worship, vocational school or government services use.
11.
Dispatching office: A dispatching office shall be limited to no more than three (3) service or delivery vehicles unless specifically approved by the Village Council as part of a Planned Unit Development.
12.
Dog daycare:
a.
Waste disposal: A dog daycare shall comply with each of the following standards:
(1)
Palm Beach County Environmental Control Rule (ECR) 1 and ECR 2;
(2)
All applicable rules and regulations of the Florida Department of Environmental Protection (FDEP);
(3)
All applicable rules and regulations of the Palm Beach County Health Department;
(4)
All applicable rules and regulations of the Palm Beach County Solid Waste Authority.
b.
Number of dogs: The number of dogs permitted shall be based upon the square footage of the facility pursuant to Palm Beach County Animal Control Center limitations and requirements.
c.
Vehicle drop-off spaces: Vehicle drop-off spaces shall be provided and are subject to the following standards:
(1)
At least three (3) drop-off spaces shall be provided for each fifty (50) dogs of approved capacity; and
(2)
Drop-off spaces shall measure not less than twelve (12) feet by twenty (20) feet.
d.
Outdoor runs/dog exercise areas: If used, outdoor runs or dog exercise areas shall be located a minimum of three hundred (300) feet from a residential use or zoning district or shall be fenced utilizing a sound-absorbing material on any side which is adjacent to or separated only be street from any residential use or zoning district to contain the sound as required by chapter 19, article VI of this Code. Such outdoor runs or dog exercise areas shall be hard surfaced or grassed and if hard surfaced, shall have drains provided every ten (10) feet and be connected to a central or individual sanitary facility approved by Seacoast Utility Authority or the Palm Beach County Health Department. Grassed outdoor runs and dog exercise areas shall be maintained by removing dog waste daily. A minimum six-foot high fence shall be required around outdoor runs and dog exercise areas. In addition, where chain-link fencing is used, a continuous solid opaque hedge a minimum of four (4) feet at installation shall be provided around the outdoor run area or dog exercise area. Animals shall not be left overnight in outdoor runs or dog exercise areas.
13.
Film production studio:
a.
Outdoor activities: Outdoor activities, including filming or staging of a film, are prohibited unless specifically authorized by the Village Council.
b.
Film permit: Prior to commencement of any regulated activity related to the production of a film within the Village, a film permit shall be issued by the Director of the Palm Beach County Film and Television Commission. The duration of the permit shall not exceed twenty-four (24) months without approval of the Community Development Director.
14.
Food trucks:
a.
Food trucks shall only be permitted as an accessory use to a primary, approved use.
b.
Food trucks selling items other than packaged or pre-packaged food items shall be licensed as mobile food dispensing vehicles by the Florida Department of Business and Professional Regulation, Division of Hotels and Restaurants and shall comply with all rules and regulations promulgated by the Division, including, but not limited to, those pertaining to potable water and waste disposal. Food trucks selling packaged and pre-packaged food items only shall be licensed by the Florida Department of Agriculture and Consumer Services.
15.
Kennel, commercial:
a.
Limitations of use: A commercial kennel shall be limited to the training, boarding and grooming of dogs and cats.
b.
Outdoor runs: Outdoor runs shall comply with the requirements of subsection D.12.d.
16.
Manufacturing, assembly or processing: All activities involving the manufacturing, assembly or processing of goods shall be within completely enclosed buildings with permanent outside walls.
17.
Parking lot or parking garage, commercial:
a.
Principal use: Parking spaces may be rented for daily parking only. Any other businesses of any kind shall not be conducted on the lot, including repair service, display, or storage of other goods, except mobile emergency services and detailing.
b.
Location: A commercial parking lot shall not be located on a parcel adjacent to residential land uses.
c.
Storage: Storage of vehicles and trailers shall be permitted if screened from public view by a permanent opaque wall or fence.
18.
Residential substance abuse treatment.
a.
No residential substance abuse treatment establishment may be located within one thousand (1,000) feet of any other residential substance abuse treatment establishment. The separation distance shall be measured from the closest property line of each residential substance abuse treatment center establishment.
b.
The maximum number of beds allowed in a residential substance abuse treatment facility shall be determined by multiplying the gross acreage of the site by forty-seven and twenty-eight-hundredths (47.28) beds per acre.
19.
Restaurant, fast food:
a.
Fast-food restaurants shall be located at the intersection of two (2) public access roads.
b.
Drive through facilities, including queuing and by-pass lanes that run parallel and are visible from adjacent streets, shall provide additional landscaping to mitigate views of the vehicular use areas.
c.
Required parking spaces shall not be separated from the restaurant main entrance by a distance of more than one hundred fifty (150) feet.
d.
Cross-access shall be provided to all abutting parcels that have a non-residential zoning classification. A cross-access easement shall be recorded prior to issuance of a building permit.
20.
Security or caretaker dwelling:
a.
Number: One (1) security or caretaker dwelling shall be permitted as an accessory use on the same lot as a principal use permitted per subsection C.
b.
Occupancy: A security or caretaker quarters shall be for the exclusive use of the site on which it is located and shall be occupied only by the custodian, caretaker, or owner of the principal use and his or her immediate family.
c.
Maximum size: The maximum size of a security or caretaker dwelling shall be not more than eight hundred (800) square feet.
21.
Self-service storage, limited access:
a.
Exterior service doors: All exterior service doors must not be visible from any public street or adjacent property.
b.
Maximum height: Buildings shall be a maximum of two (2) stories in height.
c.
Blank walls: No blank walls shall be permitted facing the front yard.
d.
Minimum separation: A minimum of one thousand (1,000) feet separation shall be required between limited access storage facilities. The separation distance shall be measured from the closest property line of each self-service storage facility.
22.
Veterinary clinic: Outdoor runs shall comply with the requirements of subsection D.12.d.
23.
Warehouse:
a.
Accessory office: The maximum amount of office space in each warehouse bay shall not exceed thirty (30) percent of the gross floor area of the associated bay.
b.
Sales: General retail sales are prohibited.
c.
Manufacturing: Manufacturing, assembly or processing activities are prohibited in a warehouse.
24.
Medical marijuana treatment centers:
a.
Location requirements: Medical marijuana treatment center cultivating or processing facilities may not be located within five hundred (500) feet of any real property that comprises a public or private elementary school, middle school, or secondary school. The distance shall be measured by drawing a straight line from the nearest property boundary line of the medical marijuana treatment center to the nearest property boundary line of the public or private elementary school, middle school, or secondary school. The distance shall not be measured by a pedestrian route or automobile route.
b.
Compliance with laws: Medical marijuana treatment centers shall, at all times, comply with the licensing and regulatory requirements of section 381.986, Florida Statutes, as amended, and all other applicable statutes and state administrative rules, including the Florida Building Code, the Florida Fire Prevention Code, and any local amendments thereto.
c.
License or permit fees: Medical marijuana treatment centers shall be charged all license or permit fees in an amount equal to the license or permit fees charged to pharmacies. Any person or entity applying for or renewing a business tax receipt for a medical marijuana treatment center within the village shall exhibit an active state license, or proof of same, before such business tax receipt may be issued.
E.
Deliveries adjacent to residential land uses. Any establishment that receives deliveries and is located adjacent to residential land uses shall be subject to the following restrictions:
1.
Deliveries shall be limited to the hours of 6:00 a.m. to 5:00 p.m. only, Monday through Saturday, and are prohibited on Sunday.
2.
Delivery truck engines, including refrigeration units, shall not be operated between the hours of 5:00 p.m. and 6:00 a.m.
F.
Wellfield protection. All permitted and accessory uses within the I-1 light industrial district shall be subject to the provisions of Article 14.B Wellfield Protection of the Palm Beach County Unified Land Development Code, as amended.
G.
Building site area regulations. In the I-1 district, each lot or parcel of land shall comply with the following standards:
1.
Minimum site area: One (1) acre.
2.
Minimum lot width: One hundred (100) feet.
3.
Minimum Lot Depth: Two hundred (200) feet.
4.
Minimum front setback: Forty (40) feet.
5.
Minimum Rear Setback: Twenty (20) feet.
6.
Side Interior Setback: Fifteen (15) feet.
7.
Side Corner Setback: Twenty-five (25) feet.
8.
Building height: Thirty-five (35) feet.
9.
Maximum lot coverage: Forty-five (45) percent.
10.
Maximum floor-area-ratio: Forty-five-hundredths (0.45).
H.
Property perimeter requirements. The following general requirements for the treatment of property perimeters shall apply to the I-1 light industrial district:
1.
Abutting I-1 properties. When two (2) parcels within an I-1 light industrial zoning district abut side and/or rear setbacks, the required landscape material in the abutting side or rear setback of the perimeter buffer may be relocated to the interior landscape area or other perimeter buffers of the subject property. The relocation of the required landscape material must be approved by the Planning Commission.
2.
Waiver of perimeter requirements. Property perimeter requirements for properties in the I-1 District may be reduced or waived by the Village Council, on a case by case basis during the Planned Unit Development (PUD) approval process. The reduction or deletion of the landscape design standards shall be permitted only when such action shall further the purpose and intent of the I-1 District and where one (1) or more of the following circumstances exists:
a.
Proximity to railroad tracks;
b.
Non-conforming lot status;
c.
Proximity to public land containing a significant buffer;
d.
Proximity to a public right-of-way containing an extensive landscape buffer or screening wall.
I.
Landscape buffer standards for Congress Avenue. Each I-1 District parcel of land adjacent to the ultimate right-of-way of Congress Avenue shall provide a landscape buffer running parallel with the right-of-way. The landscape buffer shall comply with the following standards:
1.
Minimum width. The landscape buffer shall have a minimum width of twenty-five (25) feet, as measured from the ultimate right-of-way line, as determined by Palm Beach County.
2.
Restrictions. Buildings or structures shall not be erected or reconstructed within this buffer, except for permitted signs, lighting or required public utilities.
3.
Required planting palette for installed vegetation. As a minimum, eighty (80) percent of the total installed and/or preserved landscape material shall be selected from native plant species consistent with the requirements of Section 27-62(a).
4.
Tree and shrub planting requirements.
a.
Required tree heights. At the time of installation all tree material shall be of heights varying from six (6) feet to fifteen (15) overall feet or higher. The minimum following height requirements shall apply:
b.
Minimum number of trees. The minimum number of trees and shrubs required in the buffer is as follows:
*
Pedestrian and vehicular access points may be excluded from the above linear buffer requirements when the access points are approved by the Village.
c.
Shrub planting requirements. Shrub planting requirements. At time of installation all shrub material shall be thirty-six (36) inches in height with a minimum container size of three (3) gallons for all nursery materials. Tree spade and transplanted material from on-site shall be a minimum thirty-six (36) inches in height at time of planting.
5.
Preserved plant materials. Existing on-site native vegetation shall be preserved where possible within the required buffer widths. Existing native trees and shrubs that are preserved or relocated within the buffer areas will be credited towards satisfying the minimum required installation of landscaping.
6.
Lakes. Lakes may be provided within the required buffer areas provided the minimum buffer width specified is provided. Buffer area plant materials displaced by a lake shall be included within other required buffer areas.
J.
Off-street parking and loading regulations.
1.
Prohibitions:
a.
The storage or display of merchandise, motor vehicles for sale, or the repair of vehicles in designated parking areas or on sidewalks is prohibited.
b.
Parking shall not be permitted in the first ten (10) feet of the required front yard depth, measured from the street right-of-way line.
2.
Parking spaces required. For each of the uses permitted in subsection C., the Community Development Director or his or her designee shall determine, prior to the submittal of a site plan application, which of the following general categories of parking spaces requirements shall apply to a specific development concept:
3.
Off-street loading. The following provisions shall regulate off-street loading facilities in the I-1 District for those permitted uses requiring such facilities. A determination of the need for off-street loading spaces shall be made by the Planning Commission based upon an applicant's statement of use describing the nature of the proposed establishment to be submitted with a site plan approval application.
a.
Required number and size of off-street loading facilities. Each use determined to require off-street loading spaces shall comply with the requirements indicated below:
b.
Location. Loading spaces shall be located such that vehicles engaged in loading and unloading activities will not encroach upon, or interfere with, the public use of streets or alleys.
c.
Marking and use of loading spaces. Required loading spaces shall be clearly marked, and shall not be utilized as storage for garbage or trash containers or any other items.
d.
Minimum clear height. All loading spaces shall have a minimum clear height of thirteen and one-half (13½) feet.
4.
Vehicle use area requirements.
a.
In keeping with the purpose and intent of this chapter, the following general requirements for vehicle use areas shall apply to the I-1 District:
b.
Vehicle use area requirements may be reduced or waived by the Village Council through the Planned Unit Development (PUD) process, on a case by case basis. The reduction or deletion of the landscape design standards shall be permitted only when such action shall further the purpose and intent of the I-1 District and where one (1) or more of the following circumstances exists:
(1)
Proximity to railroad tracks;
(2)
Non-conforming lot status;
(3)
Proximity to public land containing a significant buffer;
(4)
Proximity to a public right-of-way containing an extensive landscape buffer or screening wall.
K.
Artificial lighting. Artificial lighting used to illuminate the premises in the I-1 District shall be directed away from adjacent residential properties.
L.
Access. Prior to issuance of a building permit, the I-1 District parcel shall have access to either a dedicated public road or street, or to a private road or street developed to Village standards.
M.
Fences, walls and hedges. Fences and walls enclosing any permitted use shall comply with the following regarding site visibility:
1.
Within the area formed by the rights-of-way lines of intersecting streets, a straight line connecting points on such rights-of-way lines at a distance of twenty-five (25) feet in length along such rights-of-way lines, such connecting lines extending beyond the points to the edge of the pavement, there shall be a clear space with no obstruction to vision. Fences, walls, hedges and vision obstructing plantings shall be restricted to a height of two and one-half (2½) feet or less above the average grade of each street as measured at the centerlines thereof.
2.
No fence, wall or hedge in the I-1 light industrial district shall exceed a height of eight (8) feet.
N.
Outdoor storage. Outdoor storage and display may be permitted in the I-1 District where such use is customarily incidental to the principal use. Such outdoor display and sale of merchandise shall be limited to the operation of the principal business located at the premises in question and conducted by employees of said principal business. There shall be no outdoor display and sale of merchandise by any person operating or conducting a business which is different or distinct from the principal business conducted at such location.
a.
Outdoor storage may be permitted adjacent to a structure provided it is located in an area other than a parking area or yard setback area and screened from a street or abutting residentially zoned property by a masonry wall, ornamental fence or dense hedge planting no less than six (6) inches higher than the materials stored. Screening density must be such that items within the screened area will not be visible through such screening. When the outside storage is abutting a residential district, the height of the stored materials shall not exceed seven and one-half (7½) feet from the grade level.
b.
Side and rear yard screening will not be required when the abutting property is also within the I-1 District.
c.
Loose materials such as sand, lumber, cardboard boxes and the like, which are subject to being scattered or blown about the premises by normal weather conditions shall not be allowed. Mulch, soil, and aggregate products which are ancillary to a nursery may be stored outside provided that a materials management program is approved by the Village.
O.
Screening. All mechanical, electrical, water meters, exhaust vents, etc., located at ground or roof-mounted shall be entirely screened from public view utilizing opaque materials (i.e., wood fencing, brick, block, etc.) as screening. Landscaping material shall be incorporated in addition to opaque screening on equipment located at ground level. Screening material shall accommodate maintenance or inspection thereof with the use of appropriate panels, and/or hinged gates.
P.
Signs. All signs, permanent and temporary, shall be located a minimum of ten (10) feet from the ultimate rights-of-way line of the adjacent street or road, as defined by the Village or Palm Beach County, as appropriate.
1.
Permit required. All signs shall require the issuance of a building permit prior to erection and in accordance with the procedures established by the Village for the issuance of building permits.
2.
All building permit applications for signage in the I-1 District shall comply with Article V, Signs and Outdoor Displays of the Village Code.
3.
Where distinctions among uses are made in Article V, uses in the I-1 District shall be considered to be commercial uses.
Q.
Northlake Boulevard Overlay Zone. Any property located within the Northlake Boulevard Overlay Zone and assigned an I-1 light industrial zoning designation shall comply with Section 45-35.3.
(Ord. No. 2015-11, § 4, 6-25-15; Ord. No. 2017-21, § 3, 12-14-17; Ord. No. 2020-06, § 25, 9-24-20)
Medical marijuana treatment center dispensing facilities shall be prohibited within the corporate limits of the village.
(Ord. No. 2017-21, § 3, 12-14-17)
(a)
Applicability. The regulations set forth in this section shall apply to any building or structure utilized as a vacation rental within any village zoning district. A vacation rental is a dwelling unit that is also a transient public lodging establishment, but is not a time share project. A transient public lodging establishment, as defined by F.S. § 509.013(4)(a), as amended, is any unit which is rented out to guests more than three (3) times in a calendar year for periods of less than thirty (30) days or one (1) calendar month, whichever is less, or which is advertised or held out the public as a place regularly rented to guests for periods less than thirty (30) days or one (1) calendar month, whichever is less.
(b)
Registration and inspection.
(1)
Registration required. It shall be unlawful for any person or entity to operate a vacation rental within the corporate limits of the village without first registering the vacation rental with the community development department in accordance with the requirements of this division. All existing vacation rentals shall be required to be registered by October 1, 2021.
(2)
Initial registration. Every vacation rental owner or operator shall first register with the village by submitting to the community development department a properly completed and notarized registration form, as prescribed by the village, together with a registration fee in an amount established by resolution of the village council. A separate registration form shall be required for each vacation rental. The registration form shall be accompanied by the following:
a.
A copy of the business tax receipt issued by the village;
b.
A copy of the Florida Department of Business and Professional Regulation license as a transient public lodging establishment/vacation rental;
c.
A copy of the vacation rental's current and active certificate of registration with the Florida Department of Revenue for the purpose of collecting and remitting sales taxes, transient rental taxes and any other taxes required by law to be remitted, as applicable, or proof that payment is arranged through a third party such as an on-line platform;
d.
Proof of the establishment of an account with the Palm Beach County Tax Collector for the payment of tourist development taxes or that payment is arranged through a third party such as an on-line platform;
e.
Copies of the postings required by subsection (c)(5) below;
f.
A copy of a sample lease agreement; and
g.
A completed vacation rental responsible party designation, in the format prescribed by the village, which includes the information required by subsection (c)(4) below.
(3)
Registration renewal. After a vacation rental is initially registered, the registration shall be renewed by October 1 st of each year through the execution of a renewal affidavit, in the format prescribed by the village, and the payment of the renewal fee established by resolution of the village council.
(4)
Registration updates. Any changes to the information or submittals included with the initial registration must be reported to the village within thirty (30) days of the occurrence of such changes.
(5)
Incomplete registration/renewal. If the registration form or renewal form submitted pursuant to this section is incomplete, the registrant shall be informed of such deficiency and shall have ten (10) days to correct the deficiency.
(6)
Outstanding code violations. The village shall not process any vacation rental registration or renewal if the property has unresolved code violations or code enforcement liens.
(7)
Inspection. Inspection by the village to verify compliance with the requirements of the division may be required subsequent to initial registration with the village and annually after each renewal. Non-compliance with the requirements of this division discovered during any inspection shall be treated as a violation of the Village Code and be processed in accordance with subsection (d) below. Failure to allow the Village to inspect the vacation rental within twenty (20) days after the village notifies the owner or responsible party that the village is ready to conduct an inspection shall constitute a separate violation of the Village Code and be processed in accordance subsection (d) below.
(8)
Evidence of vacation rental operation. Advertising, listing or posting a property on the internet, utilizing any mass communication medium or in any publication as being available for use as a vacation rental creates a rebuttable presumption that the owner or operator is utilizing the property as a vacation rental. Nothing set forth herein precludes the village from presenting other forms of evidence of vacation rental operation.
(9)
False information. It shall be unlawful for any person to give any false or misleading information in connection with the requirements and obligations set forth in this section.
(c)
Vacation rental standards. No person or entity shall operate a vacation rental within the village unless such vacation rental complies with the following standards:
(1)
Minimum life/safety requirements:
a.
Swimming pool, spa and hot tub safety. A swimming pool, spa or hot tub shall comply with the current standards of the Residential Swimming Pool Safety Act, as set forth in F.S. ch. 515.
b.
Smoke and carbon monoxide (CO) detection and notification system. If an interconnected and hard-wired smoke and carbon monoxide (CO) detection and notification system is not in place within the vacation rental, then one (1) such system shall be required to be installed and maintained on a continuing basis consistent with the requirements of Section R314, Smoke Alarms, and Section R315, Carbon Monoxide Alarms, of the Florida Building Code-Residential.
c.
Fire extinguisher. A portable, multi-purpose dry chemical 2A:10B:C fire extinguisher shall be installed, inspected and maintained in accordance with NFPA 10 on each floor/level of the dwelling unit. The extinguisher(s) shall be installed on the wall in an open common area or in an enclosed space with appropriate markings visibly showing the location.
d.
Battery powered emergency lighting of primary exit. Battery powered emergency lighting which provides illumination automatically in the event of any interruption of normal lighting shall be provided for a period of not less than one (1) hour to illuminate the primary exit.
e.
Emergency egress and maintenance. Halls, entrances and stairways within a vacation rental shall be clean and ventilated. Hall and stair runners shall be kept in good condition. Rails shall be installed on all stairways and around all porches and steps.
(2)
Maximum occupancy. Each vacation rental dwelling unit shall comply with the occupancy limitations set forth in the Property Maintenance Code referenced in section 15-27 of this Code, provided, however, that in no event shall maximum occupancy of such dwelling unit exceed two (2) persons per bedroom plus two (2) additional persons.
(3)
Lease requirements. There shall be a written or online lease, rental, tenant or other recorded agreement memorializing each vacation rental tenancy between the owner or responsible party and the occupant(s). The agreement shall, at a minimum, contain the following information:
a.
The maximum number of occupants for the unit as specified in subsection (2) above;
b.
The number of parking spaces associated with the vacation rental unit, if applicable, and the location of such spaces;
c.
The names and ages of all persons who will be occupying the unit;
d.
The dates of such occupancy; and
e.
A statement that all occupants must evacuate from the vacation rental following any evacuation order issued by local, state or federal authorities.
The village reserves the right to request and receive a copy of any vacation rental lease or rental agreement from the owner or responsible party at any time.
(4)
Parking. All occupants of and visitors to a vacation rental must abide by all applicable parking regulations and park only in designated and/or approved areas.
a.
If the vacation rental is a single-family home or duplex, occupants and visitors may only park vehicles on driveways, in garages or carports, on approved, stabilized parking areas (consisting of space that is covered and graded by semi-permeable or impervious materials such as asphalt, concrete, pavers, gravel or similar material), or on the street or swale area immediately adjacent to the vacation rental property. Occupants and visitors may not park on the street or swale area that abuts an adjacent dwelling.
b.
The number of automobiles that may be parked at a vacation rental outside of a carport or garage shall be limited to one (1) automobile per bedroom, plus one (1), not to exceed a total of five (5) automobiles.
(5)
Vacation rental responsible party. Each vacation rental must designate a responsible party to respond to routine inspections as well as non-routine complaints and any other problems related to the operation of the vacation rental. The property owner may serve in this capacity or shall otherwise designate another person eighteen (18) years or older to perform the following duties:
a.
Be available by telephone at the listed phone number twenty-four (24) hours per day, seven (7) days per week and be capable of handling any issues relating to the operation of the vacation rental;
b.
If required, be willing and able to come to the vacation rental within two (2) hours following notification from an occupant, the owner, or the village to address any issues relating to the operation of the vacation rental;
c.
Maintain a record of all lease or rental agreements for the vacation rental;
d.
Receive service of any legal notice on behalf of the owners for violation of the requirements set forth in this division; and
e.
Otherwise monitor the vacation rental to ensure compliance with the requirements set forth in this division.
(6)
Minimum vacation rental information required postings. The vacation rental shall be posted with the following information, either on the back of or next to the main entrance door or on the refrigerator:
a.
The name, address and telephone number of the vacation rental responsible party;
b.
A notification that all garbage or trash must be placed in a garbage or trash can or other approved garbage receptacle and that all recyclables must be placed in approved recyclable containers;
c.
The location of the nearest hospital;
d.
The location of designated parking spaces/areas, if applicable; and
e.
For units located within multi-family buildings more than two (2) stories in height, a building evacuation map (at least eight and one-half (8½) inches by eleven (11) inches) shall be posted on or next to the interior portion of the front door.
(7)
Other regulations. Vacation rentals must comply with all other regulations, standards and requirements set forth in the Village Code of Ordinances, including, but not limited to, the requirements of chapter 4 (Animals and Fowl), chapter 6 (Buildings and Building Regulations), chapter 14 (Health and Sanitation), chapter 15 (Housing), chapter 18 (Motor Vehicles and Traffic), chapter 19 (Offenses and Miscellaneous Provisions) and Appendix C (chapter 45) (Zoning).
(d)
Violations; remedies; enforcement.
(1)
Violations. Non-compliance with any provision of this division shall constitute a violation of the Village Code of Ordinances and each day the violation exists shall constitute a separate and distinct violation.
(2)
Remedies and enforcement. Any violations of this division may be enforced pursuant to section 1-8 of the Village Code of Ordinances, through the code enforcement process set forth in chapter 2, article VI of the Village Code of Ordinances, or through any other manner authorized by law, including, but not limited to, injunctive relief.
(3)
No waiver. A valid vacation rental registration shall not be construed as a waiver of any of the requirements contained within the Village Code of Ordinances or the Village's Comprehensive Development Plan nor shall such registration be construed as approval of a use or activity that would otherwise be illegal under Florida law or prohibited by the Florida Building Code or the Florida Fire Prevention and Life Safety Code.
(Ord. No. 2021-14, § 2, 9-8-21)