- DISTRICTS
For the purpose of this chapter, the City is hereby divided into zoning districts as follows:
(Ord. No. 100-02-08, § I(exh. A, § III(A)), 8-12-2008; Ord. No. 100-06-11, § I, 5-17-2011)
The location and boundaries of each of the districts herein established are shown on the official Zoning District Map, which is hereby incorporated into this chapter. The Zoning District Map, together with all notations, references and other information shown thereon and all amendments thereto, is hereby adopted and approved, incorporated herein and made a part hereof and collectively shall constitute the official Zoning District Map, and shall be as much a part of this chapter as if fully set forth and described herein. The Zoning District Map, properly attested, is on file in the office of the City Secretary.
(Ord. No. 100-02-08, § I(exh. A, § III(B)), 8-12-2008; Ord. No. 300-07-12, § I(2), 9-24-2012)
Where uncertainty exists with respect to the boundaries of any of the districts described above and as shown on the Zoning District Map, the following rules shall apply:
(1)
Where district boundaries are indicated as approximately following the right-of-way lines or centerline of streets, alleys or highway rights-of-way, such right-of-way lines or centerline of streets, alleys, or highway rights-of-way shall be construed to be the boundaries.
(2)
Where district boundaries are indicated that they approximately follow the lot lines, such lot lines shall be construed to be the boundaries.
(3)
Where district boundaries are so indicated that they are approximately parallel to the centerline of street lines of streets, or highways, such district boundaries shall be construed as being parallel to the centerline of such streets or highways and at such distance there from as indicated on the Zoning District Map. If no distance is given, such dimension shall be determined by use of the scale appearing on the Zoning District Map.
(4)
The district boundary lines on the Zoning District Map shall be determined by the scale appearing on the Zoning District Map.
(5)
In the case of a district boundary line dividing a property into two parts, the district boundary line shall be determined by use of the scale appearing on the Zoning District Map.
(6)
Whenever any street, alley, or other public way is vacated by official action of the City Council, the zoning district adjoining each side of such street, alley or public way shall be automatically extended to the center of such vacated area, and the vacated area shall then and henceforth be subject to all regulations of the respective extended districts.
(7)
Where the streets or alleys on the ground differ from the streets or alleys shown on the Zoning District Map, the streets or alleys as existing on the ground shall control.
(Ord. No. 100-02-08, § I(exh. A, § III(C)), 8-12-2008)
The regulations herein established shall apply uniformly to all areas having the same district classification and bearing the same designation on the Zoning District Map.
(Ord. No. 100-02-08, § I(exh. A, § III(D)), 8-12-2008)
Property which is within the extraterritorial jurisdiction (ETJ) and is contiguous to the existing limits of the City may be annexed prior to, concurrent with, or subsequent to development and/or subdivision. The owner is required to submit to the City a petition requesting annexation which is in compliance with all provisions of the Tex. Local Government Code §§ 43.025 and 43.028. Property so annexed will be temporarily zoned A-2 Single-Family Residential subject to any prior nonconforming use, provided that the owner(s) of property being annexed to the City may apply for zoning on such property on or after the date on which such annexation proceedings are initiated, and such zoning approval may be effective as of the effective date of such annexation.
(Ord. No. 100-02-08, § I(exh. A, § III(E)), 8-12-2008)
(a)
Use regulations. In A-1, A-2, A-3, A-4 and A-5 PUD Single-Family Residential Districts, no land shall be used and no building shall be erected for or converted to any use other than as a single-family residence. In addition, the following structures shall also be allowed together with the single-family residence:
(1)
Accessory buildings and structures under the following conditions:
a.
Size limitations.
i.
The gross floor area of all accessory buildings and structures shall not occupy more than 20 percent of the rear yard.
ii.
In no case shall any accessory building be built closer than ten feet to the principal main building. The height of an accessory building or structure shall not exceed one story.
b.
Location limitations.
i.
Accessory buildings or structures greater than eight feet in height are disallowed within building setback lines.
ii.
Accessory buildings or structures less than eight feet in height are allowed within a side or rear setback if the adjacent property line(s) are screened by a solid fence.
c.
An unattached garage, as described in section 36-36(f) and section 6-91 is regulated as an accessory building.
d.
One accessory building may be used as a dwelling unit as long as the use is consistent with the use of the property as a single-family residence.
e.
One accessory building may be used for long-term rental as long as the use is consistent with the use of the property as a single-family residence.
f.
Accessory structures may not be used for parking or storage of vehicles. See section 36-36(f) for the City's garage and carport regulations.
(2)
Portable construction buildings under the following conditions:
a.
Authorization may be issued by the City Building Official to permit a portable construction building to be temporarily located on a lot upon which a building permit has been previously issued for construction of any building or structure.
b.
A certificate of occupancy related to construction shall not be issued by the City Building Official until the portable construction building has been removed from the premises and further, that the certificate of occupancy shall not be issued until the electrical connection which served the portable construction building has been removed from the lot in question.
c.
A temporary permit issued pursuant to this section shall be void upon issuance of the certificate of occupancy, or 12 months after issuance of the building permit, whichever time is shorter.
d.
In any case in which construction is not completed within the 12-month period, the City Building Official, after due consideration and determination that active construction is being accomplished, may issue an extension of time for the temporary permit, not to exceed a six-month period.
(3)
Swimming pools pursuant to the International Swimming Pool and Spa Code adopted by the City under section 6-9 and pool regulations under section 6-96 and any other applicable City regulations;
(4)
Sport Courts pursuant the City's sport court regulations under 6-104 and any other applicable City regulations; and
(5)
Entryway features and the front setback. Porches or porte cocheres at the front of a residence are only allowed to extend from the primary residence into the front setback under the following conditions:
a.
A porte cochere must be attached to the main building, remain open on three sides and shall not extend more than 30 feet from the main building nor shall project more than 25 feet into the front setback. See section 36-1 for full definition of a porte cochere.
b.
Only an open porch that is open on a minimum of three sides and no wider than 25 feet may project into the front setback. An open porch shall not project more than ten feet into the front setback. See section 36-1 for full definition of a porch.
c.
A porte cochere located at the front of a residence shall not be used for long-term storage of vehicles and is not considered a carport.
(b)
Storage or parking of recreational/commercial and covered vehicles/equipment. Storage or parking of recreational/commercial and covered vehicles/equipment is prohibited in all residential districts, except as follows:
(1)
When the recreational/commercial vehicle is used for the primary transportation of the owner;
(2)
When such vehicles and equipment are placed within a completely enclosed building on any residential lot;
(3)
Any such vehicle of eight feet or less in height may be placed on a residential lot behind the dwelling unit, including upon side setbacks, so long as such vehicle is properly screened from the street view of the front property line by either a fence or screening device;
(4)
When any such vehicle exceeds eight feet in height, it may be placed on a residential lot only if the residential lot is greater than 0.7 acres, and if such vehicle is properly screened from view by a fence or a screening device that is at least eight feet in height. In addition, the vehicle must be placed behind the front face of the dwelling unit. Side and rear setbacks may be used provided that a five-foot side and rear setback be maintained at all times;
(5)
Temporary open parking of one recreational vehicle or one piece of recreational equipment in the front yard is allowed for no more than four days at a time but total open parking time in any given month shall not exceed eight days to allow for customary loading/unloading, cleaning and maintenance.
(c)
Parking or storage of motor vehicles in a front, side or rear yard. Parking or storage of motor vehicles in a front, side or rear yard is prohibited outside of garage spaces, carports, driveways, or additional all-weather surfaces as regulated under sections 36-36(f) and 36-36(g). The parking or storage of motor vehicles on an unimproved surface for more than 24 hours is strictly prohibited.
(d)
Other use regulations. See Table No. 1.
(e)
Exterior architectural features. Each new structure must possess an exterior in keeping with the residence and general atmosphere of the surrounding area.
(1)
Exterior walls in A-1 Districts. The City of Shavano Park recommends exterior walls of residences in areas zoned in A-1 to have a minimum of 60 percent masonry, exclusive of openings.
(2)
Exterior walls A-2, A-3, A-4 and A-5 PUD. The City of Shavano Park recommends exterior walls of residences to have a minimum of 75 percent masonry, exclusive of openings. Perm stone or asbestos shingles, concrete block and cinder block, and metal exterior wall coverings, are not recommended except that concrete and cinder blocks may be used structurally if faced with rock, brick or stucco in accordance with the International Building Code most recently adopted by the City of Shavano Park.
(3)
If a variance or other waiver from any related code, including this chapter, is requested, exterior architectural features may be a required condition of approval.
(f)
Garages and carports.
(1)
Garages. A minimum two-car garage shall be provided at each residence. Residential garage doors are not to exceed ten feet in height. An additional garage may be provided as an accessory building pursuant to regulations in section 36-36(a). No garage shall open onto any street, roadway or cul-de-sac unless the lot in question fronts two streets which will allow the garage to face the street perpendicular to the front of the residential structure. In the A-1 District a front facing garage may be constructed if it is substantially screened by a screening device to not be visible from the public street as determined by the Building Official. Except as provided, attached garages shall be rear or 90-degree side loaded. Conversion of an existing garage to another use shall be permitted only where replacement garage space is provided. Doors on secondary garages for the purpose of storing recreational vehicles may be of a height necessary to store the vehicle. Detached garages shall conform to building setback lines and structural regulations and may or may not face the street final decision is the Building Official's decision), but may not be substantially visible from the street.
(2)
Carports. Carports may not, under any circumstances, be substituted for garage space. No carport may open on any street, roadway or cul-de-sac. In situations where a lot fronts two streets and the garage opens to the street perpendicular to the front of the structure, no carport will be allowed. All carports shall conform to all building setback lines, structural regulations and be rear or 90-degree loaded. All carports must be built in conjunction with existing garage space and not as freestanding structures. A porte cochere is not considered a carport.
(g)
Driveways and Additional All-weather Parking Surfaces.
(1)
Driveways. In all residential zoning districts, a driveway shall be provided for each residential lot from an authorized curb cut to the primary residence and/or the residence's front door, garage space (detached or attached), or carport. Driveway shall be, at minimum, of sufficient size to accommodate two motor cars for each dwelling unit. Driveways shall not be extended to additional all-weather parking surfaces on a residential lot that are nonadjacent to an existing driveway.
(2)
Additional All-weather Parking Surfaces. In addition to a residential driveway, residential lots greater than 0.9 acre in size are allowed to construct additional all-weather surfaces for vehicular parking under the following conditions:
a.
Additional All-weather surfaces cannot be placed in the front yard. Only side and rear yards are allowed.
b.
Additional All-weather surfaces shall not be placed within building setback lines.
c.
The additional all-weather surface must be at least three inches in thickness after compaction. Any base material is included in this measurement.
d.
Additional All-weather surfaces cannot be covered by a structure. See section 36-36(f) for the City's garage and carport regulations.
e.
Additional All-weather surfaces shall not be placed in a drainage easement or floodplain and shall not be built in such a way that it increases storm water flow onto neighboring properties as determined by the City Building Official.
f.
Additional All-weather surfaces are limited to 600 square feet in size on 0.9 to 1.9 acre lots; limited to 800 square feet on 1.9 to 2.9 acre lots and limited to 1,000 square feet on lots greater than 2.9 acres in size. Residential driveways shall not be included in this size calculation.
g.
Additional All-weather surfaces must be screened so as to be obscured from view on a public street as determined by the City Building Official.
h.
Additional All-weather surfaces shall not be used for long-term storage of inoperable or junk vehicles as defined by section 32-155 of the City's Code of Ordinances.
(h)
Fences.
(1)
All fences, including screening walls, shall meet the following conditions:
a.
Fences shall be constructed of masonry, brick, stone, concrete, solid metal, wrought iron-style metal and/or rot resistant wood materials. No fence material shall be thinner than one-half inch thickness. In the A-1 district chainlink and hog wire style fences are additionally permitted, excepting all A-1 district lots in the NW Military Highway (FM 1535) Urban Corridor. For detailed fence regulations of the Urban Corridor of NW Military Highway see section 6-133.
b.
Fences shall have colors that are aesthetically consistent with the surrounding area as determined by the Building Official during the permit and plan review process.
c.
No fence shall be higher than eight feet above grade.
d.
In no event shall a fence's base width exceed 36 inches.
e.
Fences must be constructed in such a way that does not change the natural drainage of water, as determined by the Building Official during the permit and plan review process.
f.
Fences shall not be constructed in such a way as to obstruct roadway intersection sight lines defined under section 28-125.
g.
Fences shall not be constructed in a public right-of-way. Fences crossing public easements must provide gates allowing public access.
h.
Fences shall not be energized to create an electrical circuit.
i.
Driveway gates shall have a minimum of a 12-foot opening for emergency vehicle access.
j.
Front fences must not enclose any fire hydrant that may be present.
(2)
Open or solid side and rear fencing is allowed in all residential zoning districts provided they meet the regulations of section 36-36(h)(1).
(3)
Open or solid front fencing to the front edge of the residence is allowed in all residential zoning districts provided they meet the regulations of section 36-36(h)(1).
(4)
Open front and side fencing past the front edge of the residence is allowed in A-1 and A-1 PUD (Huntington) zoning districts provided the fence meets the following, as well as the regulations of section 36-36(h)(1):
a.
Chainlink and hog wire style front fences are prohibited in Urban Corridor of NW Military Highway, see section 6-133 for detailed regulations.
b.
Front masonry landscape structures on both sides of the primary driveway entrance to the property that are not higher than eight feet above grade or greater than 25 feet in length are not considered solid front fencing and are permitted.
(5)
Solid front and side fencing past the front edge of the residence is allowed in A-1 PUD (Huntington) zoning district provided it meets the regulations of section 36-36(h)(1).
(6)
For any residential property within the City limits with a side or rear yard abutting one or more of the City streets known as Lockhill Selma Road and Huebner Road (where such property presently has a solid masonry fence (i.e. a wall) along or parallel to one or more of such streets), such property owner may not construct a gate or other opening to their side or rear yard. Any property with an existing gate as of (October 1, 2020) on property lines described above is considered a non-conforming use and may continue to exist. See section 6-133 for similar regulations for the Urban Corridor of NW Military Highway.
(7)
A summary of the fence regulations by zoning district is presented in the following table:
(i)
Height regulations. No residential building shall exceed the maximum vertical height specified in Tables 1, 2 and 6 of this chapter, and no residential building shall have more than two livable stories.
(j)
Portable buildings. Except in A-I District, a single unattached portable building (movable) constructed of light metal, wood or fiberglass used for storage only, not greater than 200 square feet in size may be erected in the rear or side yard providing the building is suitably screened from adjacent property, is not used temporarily or permanently as a habitation, and is unattached to a solid foundation. The highest point of the building may not exceed 12 feet from foundation. No portable building higher than eight feet in height measured from grade level base foundation to the buildings highest point shall be permitted in the building setbacks. In A-I District no more than two unattached portable buildings described in this subsection shall be permitted.
(k)
All liquefied petroleum gas (LPG) tanks sized greater than 100 pounds shall be installed in accordance with the National Fire Protection Association (NFPA) 58, Liquefied Petroleum Gas Code, as detailed in the Tex. Administrative Code, title 16, rule 9.142. LPG tanks shall be installed as provided in this section:
a.
To avoid possible conflicts with the State's adopted national codes under Tex. Nat. Res. Code § 113.052, the NFPA 58, Liquefied Petroleum Gas Code 6.4.1.1, and the International Fire Code, LPG tanks shall not be installed within ten feet of a property line.
b.
Any LPG tank installed within ten feet of the property line shall require a Fire Inspection by the Fire Marshal of the City of Shavano Park to ascertain the health and safety of such an installation near the property line. The City may elect to petition the Railroad Commission's executive director for permission to promulgate more restrictive rules and standards pursuant to Tex. Nat. Res. Code § 113.054.
c.
All LPG tanks constructed in front yard or side yard require a screening device erected to block view from the street.
(l)
Certain equipment allowed in setbacks. Notwithstanding any other provision found within the City of Shavano Park Code of Ordinances, HVAC equipment, generators and pool equipment are allowed within setbacks, so long as an unobstructed width of five feet exists to allow for emergency services access.
(Ord. No. 100-02-08, § I(exh. A, § IV), 8-12-2008; Ord. No. 100-07-09, § 1, 11-17-2009; Ord. No. 100-08-09, § [1], 11-17-2009; Ord. No. 100-03-10, § 1, 11-16-2010; Ord. No. 100-05-11, § 1, 5-17-2011; Ord. No. 100-10-12, § I, 10-22-2012; Ord. No. 0-2015-021, § I, 12-21-2015; Ord. No. 0-2017-001, § IV, 9-18-2017; Ord. No. O-2019-014, § V, 11-25-2019; Ord. No. O-2019-018, § III, 12-9-2019; Ord. No. O-2020-010, § I, 8-24-2020; Ord. No. O-2020-013, § IX, 9-21-2020; Ord. No. O-2021-001, § I, 2-22-2021; Ord. No. O-2022-007, § III, 9-19-2022; Ord. No. O-2024-004, § II, 8-26-2024; Ord. No. O-2025-005, § VIII, 5-19-2025)
(a)
Use regulations.
(1)
In a CE Single-Family Cottage Estates Residential Districts, no land shall be used for any purpose other than a single-family residence and related amenity purposes.
(2)
Accessory buildings under the following conditions:
a.
Size limitations.
i.
The gross floor area of all accessory buildings shall not occupy more than 20 percent of the rear yard.
ii.
In no case shall any accessory building be built closer than ten feet to the principal main building. The height of an accessory building shall not exceed one story.
b.
Location limitations.
i.
Accessory buildings greater than eight feet in height are disallowed within building setback lines.
ii.
Accessory buildings less than eight feet in height are allowed within a side or rear setback if the adjacent property line(s) are enclosed by an eight-foot solid fence.
(3)
Garages. A minimum two-car garage shall be provided for each residence. An additional garage may be provided as an accessory building pursuant to regulations in section 36-36(a)(2). No garage shall open onto any street, roadway or cul-de-sac unless the lot in question fronts two streets which will allow the garage to face the street perpendicular to the front of the residential structure. All attached garages shall be rear or 90-degree side loaded. Conversion of an existing garage to another use shall be permitted only where replacement garage space is provided. Doors on secondary garages for the purpose of storing recreational vehicles may be of a height necessary to store the vehicle. Detached garages shall conform to building setback lines and structural regulations and may or may not face the street final decision is the Building Official's decision), but may not be substantially visible from the street.
(4)
A driveway shall be provided for each residential lot from an authorized curb cut to the primary residence and/or the residence's front door, garage space (detached or attached) or carport. Driveway shall be, at minimum, of sufficient size to accommodate two motor cars for each dwelling unit. Driveways shall not be extended to additional all-weather parking surfaces on a residential lot that are nonadjacent to an existing driveway.
(5)
Swimming pools pursuant the City's adopted International Swimming Pool and Spa Code under section 6-9 and regulations under section 6-96 and any other applicable City regulations.
(6)
Sport Courts pursuant the City's regulations under section 6-104 and any other applicable City regulations.
(7)
Entryway features and the front setback. Porches or porte cocheres at the front of a residence are only allowed to extend from the primary residence into the front setback under the following conditions:
a.
A porte cochere must be attached to the main building, remain open on three sides and shall not extend more than 30 feet from the main building nor shall project more than 25 feet into the front setback. See section 36-1 for full definition of a porte cochere.
b.
Only an open porch that is open on a minimum of three sides and no wider than 25 feet may project into the front setback. An open porch shall not project more than ten feet into the front setback. See section 36-1 for full definition of a porch.
c.
A porte cochere located at the front of a residence shall not be used for long-term storage of vehicles and is not considered a carport.
(b)
Density regulations. No more than four dwelling units may be constructed per gross acre of land within each CE Zoning District.
(c)
Other use regulations. See Table No. 2.
(d)
Exterior architectural features.
(1)
Each new structure must possess an exterior in keeping with the residence and general atmosphere of the surrounding area.
(2)
Exterior walls. The City of Shavano Park recommends exterior walls of residences to have a minimum of 90 percent masonry, exclusive of openings. Perm stone or asbestos shingles, concrete block, metal panels, metal curtain walls and cinder block are not recommended except that concrete and cinder blocks may be used structurally if faced with rock, brick or stucco, in accordance with the International Building Code most recently adopted by the City.
(3)
If a variance or other waiver from any related code, including this chapter, is requested, exterior architectural features may be a required condition of approval.
(e)
Height regulations. No residential building shall exceed two livable stories in height and the permitted maximum vertical height shall not exceed the height specified in Tables 1, 2 and 6 of this chapter.
(f)
Storage or parking of recreational/commercial and covered vehicles/equipment. Storage or parking of recreational/commercial and covered vehicles/equipment is prohibited in all residential districts, except as follows:
(1)
When the reactional/commercial vehicle is used for the primary transportation of the owner;
(2)
When such vehicles and equipment are placed within a completely enclosed building on any residential lot;
(3)
Any such vehicle that is eight feet or less in height may be placed on a residential lot behind the dwelling unit, including upon side setbacks, if such vehicle is properly screened from the view from the front property line by either a fence or screening device;
(4)
When any such vehicle is greater than eight feet in height, it may be placed on a residential lot only if that lot is greater than 0.7 acres, and if such vehicle is properly screened from view by a fence or a screening device that is at least eight feet in height. In addition, the vehicle must be placed behind the front face of the dwelling unit. Side and rear setbacks may be used only so long as a five-foot side and rear setback be maintained at all times;
(5)
Temporary open parking of one recreational vehicle or one piece of recreational equipment in the front yard is allowed for no more than four days at a time but total open parking time in any given month shall not exceed eight days to allow for customary loading/unloading, cleaning and maintenance.
(g)
All liquefied petroleum gas (LPG) tanks sized greater than 100 pounds shall be installed in accordance with the National Fire Protection Association (NFPA) 58, Liquefied Petroleum Gas Code, as detailed in the Tex. Administrative Code, title 16, rule 9.142. LPG tanks shall be installed as provided in this section:
a.
To avoid possible conflicts with the State's adopted national codes under Tex. Nat. Res. Code § 113.052, the NFPA 58, Liquefied Petroleum Gas Code 6.4.1.1, and the International Fire Code, LPG tanks shall not be installed within ten feet of a property line.
b.
Any LPG tank installed within ten feet of the property line shall require a Fire Inspection by the Fire Marshal of the City of Shavano Park to ascertain the health and safety of such an installation near the property line. The City may elect to petition the Railroad Commission's executive director for permission to promulgate more restrictive rules and standards pursuant to Tex. Nat. Res. Code § 113.054.
c.
All LPG tanks constructed in front yard or side yard require a screening device erected to block view from the street.
(h)
Certain equipment allowed in setbacks. Notwithstanding any other provision found within the City of Shavano Park Code of Ordinances, HVAC equipment, generators and pool equipment are allowed within setbacks, so long as an unobstructed width of five feet exists to allow for emergency services access.
(Ord. No. 100-02-08, § I(exh. A, § V), 8-12-2008; Ord. No. 100-05-11, § 1, 5-17-2011; Ord. No. 0-2015-021, § II, 12-21-2015; Ord. No. 0-2017-001, § V, 9-18-2017; Ord. No. O-2019-018, § IV, 12-9-2019; Ord. No. O-2021-001, § II, 2-22-2021; Ord. No. O-2022-007, § IV, 9-19-2022; Ord. No. O-2024-004, § III, 8-26-2024; Ord. No. O-2025-005, § VIII, 5-19-2025)
Use regulations. In a M-U Municipal and Utility District, the land and any improvements thereon shall be used solely for municipal offices; fire and police stations; municipal repair, maintenance and storage facilities; governmental or private emergency relief facilities; telephone exchange, without business offices; electrical utility facilities and related, electrical energy facilities, transformers, relay and substations, poles and wires; natural gas handling and regulating stations, and common, private and public utility pipelines subject to the approval required under other ordinances; and community recreational maintenance facilities, and generating facilities. No land shall be used for residential or commercial purposes.
Certain equipment allowed in setbacks. Notwithstanding any other provision found within the City of Shavano Park Code of Ordinances, HVAC equipment and pool equipment are allowed within setbacks, so long as an unobstructed width of five feet exists to allow for emergency services access.
(Ord. No. 100-02-08, § I(exh. A, § VI), 8-12-2008; Ord. No. 100-05-11, § 1, 5-17-2011)
All business and office districts shall be governed by the following regulations.
(1)
General requirements. The following regulations shall apply to all property within the O-1, B-1 and B-2 zoning districts:
a.
Parking.
1.
Composition. Off street parking facilities graded for drainage and surfaced of concrete, asphaltic concrete or asphalt shall be located on the lot on which the user is located.
2.
Compact parking. Compact parking spaces are not an allowed use in any business and office district and will only be considered through a Planned Unit Development as described under section 36-40.
3.
Ingress/egress and lane width.
(i)
Ingress/egress shall be provided for each parking space. All circulation shall be internal with a minimum of 24-foot-wide lanes for maneuvering areas.
(ii)
Ratio to building area. Parking stalls shall be provided so as to maintain a ratio of at least one space (stall) per the number of square feet of gross building area specified in Table No. 6.
4.
Landscaping buffer. A landscaped buffer shall be maintained in accordance with Table No. 6. In addition to any other landscape buffer requirement, a container grown tree having a trunk diameter of at least three inches and a minimum height of ten feet with 100 square feet of planting shall be present for each ten parking spaces. All such trees shall be within planting areas having a width of at least five feet.
5.
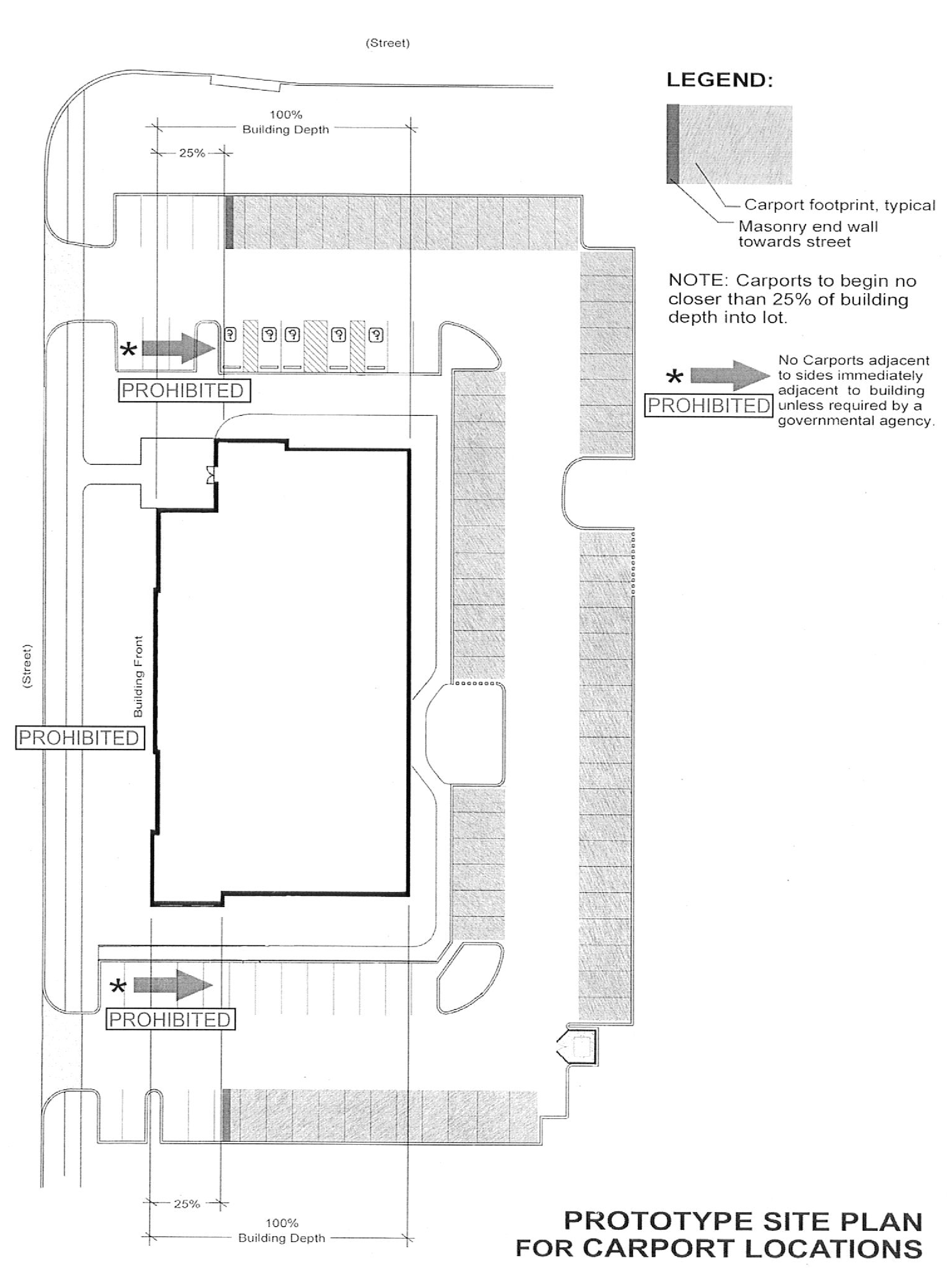
Covered parking. Covered parking shall only be permitted in a fully enclosed garage or in a carport meeting the criteria listed below. In no event shall this section be construed as to allow carports in single-family residential areas.
(i)
Carports shall be set back from the front building wall at a distance of not less than 25 percent of the length of the side building wall. See illustration below.
(ii)
Carports visible from public right of ways shall have a solid masonry end wall on the portion of the carport facing the public right of way. The end wall shall be constructed with masonry that matches that of the primary structure.
(iii)
Carports shall have support columns constructed of steel and roofs constructed of standing seam metal rated at 20 gauge or higher. Roofs shall be constructed at a minimum pitch ratio of three to 12.
(iv)
Carports shall only be permitted in the shaded areas on the illustration below.
b.
Exterior walls. The City of Shavano Park recommends exterior walls to have a minimum of 90 percent masonry construction of a residential character, exclusive of openings. Perm stone or asbestos shingles, concrete block and cinder block are not recommended except that concrete and cinder blocks may be used structurally if faced with rock, brick or stucco, in accordance with the International Building Code most recently adopted by the City. If a variance or other waiver from any related code, including this chapter, is requested, exterior architectural features may be a required condition of approval.
(2)
Setbacks.
a.
Certain equipment allowed. Notwithstanding any other provision found within the City of Shavano Park Code of Ordinances, HVAC equipment, generators and pool equipment are allowed within setbacks, so long as an unobstructed width of five feet exists to allow for emergency services access.
b.
Other use regulations. See Table No. 6.
(3)
Permitted uses. Except as otherwise allowed by this chapter, only the uses listed on Table No. 3, Table No. 4, or Table No. 5 are permitted in zoning districts 0-1, B-1 and B-2, respectively.
(4)
Electric Vehicle (EV) Charging Stations.
a.
All permitted uses under B-1, B-2, 0-1 business & office districts shall be allowed to install up to 2 EV Charging Stations of Level 2 or Level 3 capability as an accessory use for each primary commercial building for use by its employees or the public. Level 1 charging stations are prohibited.
b.
All EV Charging Stations require and must be installed meeting the requirements of the National Electric Code as adopted under section 6-7 of the City of Shavano Park Code of Ordinances. All EV Charging Stations require an electric permit and a Fire Marshal fire safety plan review & inspection from the City.
c.
Any business that installs more than 2 EV Charging Stations requires a Special Use Permit approved by the City Council. Businesses in the 0-1 District are not eligible for an EV Charging Station Special Use Permit and shall not install more than 2 EV Charging Stations.
d.
Businesses which add EV charging stations to an existing parking space, do not violate any restrictions on the number of mandatory parking spaces, if those EV Charging Stations are available for public use. Any EV Charging Stations added to existing parking spaces that restrict the usage (to employees or executives for example) are deducted from the required Parking Stall Ratio for the business under Chapter 36, Article VI, Table No. 6. Any EV Charging Station Permit which reduces the number of parking spaces below the minimum Parking Stall Ratio will not be approved since those lost parking spaces for the public will lower the number of overall available parking spaces.
e.
Public EV Charging Stations must state their electric charging rates either with posted signage, digital display or a digital application.
f.
Un-attended overnight charging of vehicles at an EV Charging Station between the hours of 11:00 a.m. and 5:00 a.m. is prohibited and violators may be cited, Each EV Charging Station will require a sign placed stating this prohibition.
g.
City staff shall provide a monthly report to City Council on the number of EV charging stations permitted in that given month.
(5)
Other regulations.
a.
Sanitary sewer. All permitted uses under B-1, B-2 and O-1 shall be connected to a public sanitary sewer system to insure proper disposal of waste.
b.
Edwards recharge zone. All land use or development occurring in the Edwards Aquifer recharge zone, or watersheds draining into the recharge zone, must comply with applicable requirements prescribed by the Texas Natural Resources Conservation Commission ("TNRCC") regarding the production of products or waste which could adversely affect the water supply if introduced into the aquifer through the recharge zone.
c.
Display signs. All signs shall conform to the sign criteria set forth in chapter 24 of the Code of Ordinances of the City of Shavano Park, as may be amended from time to time.
d.
Portable construction buildings. Portable construction buildings are only allowable under the following conditions:
1.
Authorization may be issued by the City Building Official to permit a portable construction building to be temporarily located on a lot upon which a building permit has been previously issued for construction of any building or structure.
2.
A certificate of occupancy related to construction shall not be issued by the City Building Official until the portable construction building has been removed from the premises and further, that the certificate of occupancy shall not be issued until the electrical connection which served the portable construction building has been removed from the lot in question.
3.
A temporary permit issued pursuant to this section shall be void upon issuance of the certificate of occupancy, or 12 months after issuance of the building permit, whichever time is shorter.
4.
In any case in which construction is not completed within the 12-month period, the City Building Official, after due consideration and determination that active construction is being accomplished, may issue an extension of time for the temporary permit, not to exceed a six-month period.
e.
All liquefied petroleum gas (LPG) tanks sized greater than 100 pounds shall be installed in accordance with the National Fire Protection Association (NFPA) 58, Liquefied Petroleum Gas Code, as detailed in the Tex. Administrative Code, title 16, rule 9.142. LPG tanks shall be installed as provided in this section:
1.
To avoid possible conflicts with the State's adopted national codes under Tex. Nat. Res. Code § 113.052, the NFPA 58, Liquefied Petroleum Gas Code 6.4.1.1, and the International Fire Code, LPG tanks shall not be installed within ten feet of a property line.
2.
Any LPG tank installed within ten feet of the property line shall require a Fire Inspection by the Fire Marshal of the City of Shavano Park to ascertain the health and safety of such an installation near the property line. The City may elect to petition the Railroad Commission's executive director for permission to promulgate more restrictive rules and standards pursuant to Tex. Nat. Res. Code § 113.054.
3.
All LPG tanks constructed in front yard or side yard require a screening device erected to block view from the street.
(6)
O-1 Office District.
a.
Use regulations. This district is composed of land and structures occupied by or suitable for general office use only.
b.
Other regulations.
1.
See Table No. 6.
2.
Accessory buildings. No accessory buildings may occupy more than 30 percent of the rear yard area nor shall the gross floor area of all accessory buildings on one lot exceed 50 percent of the gross floor area of the principal building structure thereon, exclusive of breezeways and attached garage; provided, however, that this regulation shall not reduce the gross total floor area of all necessary accessory buildings on one lot to less than 400 square feet and in no case shall any accessory building be built closer than ten feet to the principal main building. The height of an accessory building shall not exceed one story.
(7)
B-1 Business District.
a.
Use regulations.
1.
This district is composed of light commercial uses, provided all business activities, except for outdoor dining and Convenience Store activities, (including outdoor pay at the pump gasoline sales and stand-alone self-service car wash), are completely contained within an enclosed structure or court.
2.
Except as otherwise allowed by this chapter, only the uses specified on Table No. 4 are permitted in the B-1 Business District.
b.
Other regulations.
1.
See Table No. 6.
2.
Accessory buildings. No accessory buildings may occupy more than 30 percent of the rear yard area nor shall the gross floor area of all accessory buildings on one lot exceed 50 percent of the gross floor area of the principal building structure thereon, exclusive of breezeways and attached garage; provided, however, that this regulation shall not reduce the gross total floor area of all necessary accessory buildings on one lot to less than 400 square feet and in no case shall any accessory building be built closer than ten feet to the principal main building. The height of an accessory building shall not exceed one story.
(8)
B-2 Business District.
a.
Use regulations.
1.
This district allows for general commercial uses, provided all business activities, except for outdoor dining and Convenience Store activities, (including outdoor pay at the pump gasoline sales and stand-alone self-service car wash), are completely contained within an enclosed structure or court.
2.
Except as otherwise allowed by this chapter, only the uses specified on Table No. 5 are permitted in the B-2 Business District.
b.
Other regulations.
1.
See Table No. 6.
2.
Accessory buildings. All accessory buildings may not occupy more than 30 percent of the rear yard area nor shall the gross floor area of all accessory buildings on one lot exceed 50 percent of the gross floor area of the principal building structure thereon, exclusive of breezeways and attached garage; provided, however, that this regulation shall not reduce the gross total floor area of all necessary accessory buildings on one lot to less than 400 square feet and in no case shall any accessory building be built closer than ten feet to the principal main building. The height of an accessory building shall not exceed one story.
(Ord. No. 100-02-08, § I(exh. A, § VII), 8-12-2008; Ord. No. 100-05-11, § 1, 5-17-2011; Ord. No. 100-12-11, § I, 12-19-2011; Ord. No. 100-13-12, § I, 12-17-2012; Ord. No. 0-2013-001, § I, 4-22-2013; Ord. No. 0-2015-003, § I, 2-23-2015; Ord. No. 0-2016-010, § III, 10-24-2016; Ord. No. O-2019-018, § V, 12-9-2019; Ord. No. O-2022-007, § IV, 9-19-2022; Ord. No. O-2025-005, § IX, 5-19-2025; Ord. No. O-2025-009, § II, 6-23-2025)
(a)
Purpose. The Planned Unit Development District (PUD District) is a free-standing district designed to provide for the development of land as an integral unit for single or mixed uses in accordance with a plan that may vary from the established regulations of other zoning districts. It is the intent in such a district to insure compliance with good zoning practices while allowing certain desirable departures from the strict provisions of specific zoning classifications.
(b)
Application. An application for a planned unit development district shall be processed in accordance with this chapter. A pre-planning conference is required between the applicant and the City prior to the actual filing of the application.
(c)
Base district. A base zoning district shall be specified. The regulations in the base zoning district shall control unless specifically stated otherwise in the PUD District.
(d)
District plans and requirements. There are two types of plans that may be used in the planned unit development process. The general purpose and use of each plan is described as follows:
(1)
Concept plan. This plan is intended to be used as the first step in the planned unit development process. It establishes the most general guidelines for the district by identifying the land use types, development standards, approximate road locations and project boundaries and illustrates the integration of these elements into a master plan for the whole district.
(2)
Detail plan. The detail plan is the final step of the planned unit development process. It contains the details of development for the property.
(e)
Concept plan requirements. Said concept plan shall include the following:
(1)
Relation to the Master Plan. A general statement setting forth how the proposed district will relate to the City's master plan and the degree to which it is or is not consistent with that plan and the proposed base zoning district.
(2)
Acreage. The total acreage within the proposed district.
(3)
Survey. An accurate legal description of the boundaries of the district.
(4)
Land uses. Proposed general land uses and the acreage for each use, including open space. For residential development, the total number of units and the number of units per acre.
(5)
General thoroughfare layout. Proposed streets, as a minimum to arterial street level. (Showing collector and local streets is optional.)
(6)
Development standards. Development standards, if different from the base zoning district, for each proposed land use, as follows:
a.
Minimum lot area.
b.
Minimum lot width and depth.
c.
Minimum front, side, and rear building setback areas.
d.
Maximum height of buildings.
e.
Maximum building coverage.
f.
Maximum floor to area ratios for nonresidential uses.
g.
Minimum parking standards for each general land use.
(7)
Existing condition. On a scaled map sufficient to determine detail, the following shall be shown for the area within the proposed district.
a.
Topographic contours of ten feet or less.
b.
Existing streets.
c.
Existing 100-year floodplain, floodway and major drainage ways.
d.
City limits and E.T.J. boundaries.
e.
Zoning districts within and adjacent to the proposed district.
f.
Land use.
g.
Utilities, including water, wastewater and electric lines.
(f)
Detail plan requirements. The application for a planned unit development district shall include a detail plan consistent with the concept plan. Said detail plan shall include the following:
(1)
Acreage. The acreage in the plan as shown by a survey, certified by a registered surveyor.
(2)
Land uses. Permitted uses, specified in detail, and the acreage for each use.
(3)
Off-site information. Adjacent or surrounding land uses, zoning, streets, drainage facilities and other existing or proposed off-site improvements, as specified by the City Manager, sufficient to demonstrate the relationship and compatibility of the district to the surrounding properties, uses, and facilities.
(4)
Traffic and transportation. The location and size of all streets, alleys, parking lots and parking spaces, loading areas or other areas to be used for vehicular traffic; the proposed access and connection to existing or proposed streets adjacent to the district; and the traffic generated by the proposed uses.
(5)
Buildings. The locations, maximum height, maximum floor area and minimum setbacks for all nonresidential buildings.
(6)
Residential development. The numbers, location, and dimensions of the lots, the minimum setbacks, the number of dwelling units, and number of units per acre (density).
(7)
Water and drainage. The location of all creeks, ponds, lakes, floodplains or other water retention or major drainage facilities and improvements.
(8)
Utilities. The location and route of all major sewer, water, or electrical lines and facilities necessary to serve the district.
(9)
Open space. The approximate location and size of greenbelt, open, common, or recreation areas, the proposed use of such areas, and whether they are to be for public or private use.
(10)
Sidewalks and bike paths. Sidewalks or other improved ways for pedestrian or bicycle use.
(11)
Landscape plan. If multifamily or nonresidential development, a landscape plan unless the project will fully comply with the landscape ordinance, as amended.
A detailed plan, with all of the information required of a concept plan, may be submitted in lieu of a concept plan.
(g)
Phasing schedule. PUD Districts larger than ten acres shall provide a phasing schedule depicting the different construction phases.
(h)
Approval of district.
(1)
City Council may, after receiving a recommendation from the Planning and Zoning Commission, approve by ordinance the creation of a district based upon a concept plan. The approved plan shall be made part of the ordinance establishing the district. Upon approval said change shall be indicated on the zoning maps of the City. A concept plan and a detail plan may be submitted simultaneously for approval.
(2)
The development standards and requirements including, but not limited to, maximum height, lot width, lot depth, floor area, lot area, setbacks and maximum off-street parking and loading requirements for uses proposed shall be established for each planned development district based upon the particular merits of the development design and layout. Such standards and requirements shall comply with or be more restrictive than the standards established in the base zoning district for the specific type uses allowed in the district, except that modifications in these regulations may be granted if it shall be found that such modifications are in the public interest, are in harmony with the purposes of this chapter and will not adversely affect nearby properties.
(i)
Approval of detail plan. If not approved simultaneously the City Council may, after receiving a recommendation from the Planning and Zoning Commission, approve the detail plan for which a concept plan has previously been approved. The approved detail plan shall be permanently filed with the City. The Planning and Zoning Commission shall approve the detail plan or an amended detail plan if it finds that:
(1)
Compliance. The plan complies with the concept plan approved for that property and the standards and conditions of the PUD district;
(2)
Compatibility. The plan provides for a compatible arrangement of buildings and land uses and would not adversely affect adjoining neighborhood or properties outside the plan; and
(3)
Circulation of vehicular traffic. The plan provides for the adequate and safe circulation of vehicular traffic.
A previously approved detail plan may only be amended by the City Council upon recommendation by the Planning and Zoning Commission except to the extent allowed under subsection (l) of this section.
(j)
Expiration of detail plan. A detail plan shall be valid for five years from the date of its approval. If a building permit has not been issued or construction begun on the detail plan within the five years, the detail plan shall automatically expire and no longer be valid. The Planning and Zoning Commission may, prior to expiration of the detail plan, for good cause shown, extend for up to 24 months the time for which the detail plan is valid.
(k)
Appeals from Planning and Zoning Commission action. If the Planning and Zoning Commission imposes conditions, or refuses to grant an extension of time for which a detail plan is valid, the applicant may appeal the decision to the City Council by filing a written request with the City within ten days of the decision.
(l)
Changes in detail plan.
(1)
Except as provided in subsection (l)(2) of this section, changes in the detail plan shall be considered the same as changes in the this chapter and shall be processed as such.
(2)
Those changes which do not alter the basic relationship of the proposed development to adjacent property and which do not alter the uses permitted or increase the density, floor area ratio or reduce the front, rear or side yards provided at the boundary of the site, as indicated on the approved detail plan, may be authorized by the City Manager.
(3)
Any applicant may appeal the decision of the City Manager to the Planning and Zoning Commission for review and decision as to whether an amendment to the Planned Unit Development District Ordinance shall be required.
(m)
Minimum development size. The total initial development of any Planned Unit Development District shall not be less than two acres for nonresidential developments and 25 acres for residential developments.
(n)
Deviation from Code standards. The City Council may approve a PUD concept plan with deviations from any provision in this Code. Such deviations shall be listed or shown as part of the ordinance that approves the concept plan.
(Ord. No. 100-02-08, § I(exh. A, § VIII), 8-12-2008)
(a)
Definitions:
As used herein the term "Density Single-Family Residential" shall refer to such uses as townhomes, condominiums, and garden homes, which are generally defined as, but not limited to, buildings containing one-family dwelling units erected as a single building or multiple buildings on a single lot. It may include horizontally-stacked dwelling units but shall in no event include apartments, which are generally defined as multi-family dwelling units at a density greater than 25 units per acre.
(b)
Use regulations:
(1)
This district allows a combination of residential, office, and commercial uses, which may or may not be in the same building, and flexibility in the planning and construction of the development in accordance with an approved site plan that allows for a broad range of mixed uses.
(2)
All uses permitted in Tables 3, 4 and 5 shall be permitted in the MXD District, except that uses requiring City Council approval ("CC" uses) shall be permitted by right pursuant to an approved MXD site plan. Additionally, Density Single-Family residential uses shall be permitted pursuant to an approved MXD site plan.
(c)
Area regulations: A MXD District shall only be permitted on tracts fronting on Texas State Highway Loop 1604 and which consist of a minimum of three acres in area.
(d)
Height, density, setbacks and other limitations: A MXD District shall not be subject to the use, height, density, commercial intensity, setbacks, parking and other regulations of the City zoning regulations, currently codified as chapter 36 of the Code of Ordinances. The height, density, commercial intensity, setbacks, parking and other requirements shall be established pursuant to an approved MXD site plan, provided, however, the following regulations shall apply:
(1)
A ten-foot minimum building setback shall be required where a non-single-family residential use within the MXD District abuts a single-family use or single-family zoning district.
(2)
A 20-foot minimum front setback shall be required for front-load residential garages and a ten-foot minimum front setback shall be required for side-load residential garages.
(3)
A ten-foot minimum building setback shall be required where any residential or nonresidential use abuts a public or private street.
(4)
Exterior fences and walls shall be permitted along the property line of any residential use.
(5)
All streets within a MXD District may be publicly accessible and may be located adjacent to the property line of any developed or undeveloped land, provided a minimum 30-foot buffer is installed when such street is adjacent to any residential rear property line. If streets are privately owned and maintained they may be gated.
(6)
Parking on public streets shall only be permitted on one side of the street and shall not be permitted between the hours of 2:00 a.m. and 5:00 a.m., except that on-street cut-out parking shall be allowed at any time pursuant to an approved MXD site plan. Public streets are defined, for the purpose of this section, as that portion of the roadway and shoulder from the property line on one side of the street to the property line on the opposite side of the street.
(7)
The height of any commercial or residential structure shall not exceed 45 feet unless authorized by an approved MXD site plan and serviceable by the Fire Department.
(8)
Where residential areas are developed with private common areas and/or privately shared open space, a mandatory homeowner's association shall be created. The homeowner's association shall be responsible for maintenance and upkeep of all private common and shared areas within the boundaries of the residential development. Board composition, dues, and other procedural aspects of the homeowner's association shall be determined by the developer of the residential area.
(9)
A minimum two-car garage shall be required for each density single-family residence and may be rear, side, or front loaded.
(e)
MXD site plan: A MXD site plan shall be approved by City Council as part of a rezoning to the MXD District and shall include:
(1)
Legal description and exhibit of the property on a scaled map sufficient to determine detail showing the area to be zoned MXD.
(2)
The general location of all land use categories. Multiple categories may be designated where a lot or building is sited to include two or more categories of uses.
(3)
The general location of all existing and proposed streets.
(4)
The proposed maximum heights, densities, commercial intensities, and parking ratios.
(5)
The following existing conditions, where applicable:
a.
Topographic contours of ten feet or less.
b.
Existing 100-year floodplain, floodway and major drainage ways.
c.
Utilities, including water, wastewater and electric lines.
(f)
Amendments to approved MXD site plan:
(1)
Classification: Amendments to a previously approved MXD site plan shall be classified as a minor or major amendment. Minor amendments may be administratively accepted. Within 20 working days after the filing of the proposed amendments, the City Manager or his/her designee shall provide a written response to the applicant indicating whether or not the revised MXD site plan has been approved as a minor amendment. All revisions to an approved MXD site plan not considered a major amendment shall be considered a minor amendment. Major amendments shall require a new application for rezoning and shall be processed in the same manner as the initial MXD site plan.
(2)
Major amendments—Applicability: Increasing the area or intensity of nonresidential uses shall be considered a major amendment.
(Ord. No. 100-06-11, § II, 5-17-2011; Ord. No. 0-2015-016, § 1, 8-27-2015; Ord. No. O-2021-008, § II, 11-22-2021)
(a)
Purpose. The purpose of this section to achieve orderly development of manufactured home parks, to promote and develop the use of land to assure the best possible community environment in accordance with the City's town plan, and to protect and promote the health, safety and general welfare. Adequate protection shall be provided against any undesirable off-site conditions or any adverse influence from adjoining streets or areas.
(b)
Manufactured home park plan.
(1)
The City Building Official shall not issue building or repair permits or certificates of occupancy for structures in manufactured home parks within the incorporated areas of the City until a plan has been approved in the manner prescribed by this section and duly filed in the office of the City Building Official. The City will withhold all public improvements and services from manufactured home parks, including wastewater, water, gas and electric service until a manufactured home park has been approved in the manner prescribed by this section. Property to be developed as a manufactured home park shall be platted prior to obtaining any building permits or utility services. Such plats shall be annotated with a statement that it is a "manufactured home community," and shall annotate the plan with the same name as the subdivision plat.
(2)
Each applicant seeking approval of a manufactured home park shall submit a manufactured home park plan to the City Building Official using the same standards as described in sections 28-41 to 28-44 of the City's Code.
(3)
Upon receipt of a manufactured home park plan, the City Building Official shall distribute copies to various City departments and agencies as the City Building Official deems appropriate for their review. The departments/agencies receiving copies of the plan shall submit their comments and recommendations for approval or disapproval in writing back to the City Building Official within 30 days of receipt of the plan.
(4)
Within 45 days of the date of submission of the manufactured home park plan, the City Building Official shall submit the plan with his recommendations and comments received from other City departments and agencies to the Planning and Zoning Commission for consideration. The Planning and Zoning Commission may approve the plan as submitted, amend and approve the plan as amended or disapprove the plan.
(5)
Property to be developed as a manufactured home park shall be platted prior to obtaining any building permits or utility services.
(6)
After favorable action by the Planning and Zoning Commission, minor changes to the plan that do not increase the density or affect platting, the general character or overall design of the manufactured home park plan may be approved by the City Building Official. Major changes shall be submitted for consideration by the Planning and Zoning Commission following the same procedure required for the original adoption of the plan. The Planning and Zoning Commission shall interpret what constitutes a major change in the plan.
(c)
The site including manufactured home stands, patios, buildings and all site improvements shall be harmoniously and efficiently organized in relation to topography, the shape of the parcel, the shape, size and position of buildings and common facilities and with full regard to use and appearance.
(d)
Stand requirements. The objective of the manufactured home stand requirements set forth in this section is to provide for the following:
(1)
Practical placement of a manufactured home on its stand by means of a car or conveyor truck.
(2)
Retention of the manufactured home on the stand in a stable condition and a satisfactory relationship to its surroundings.
(3)
Practical removal of the manufactured home from the lot by means of a car, conveyor truck, or other customary moving equipment.
(e)
Standard fire hydrants, in workable condition, shall be located within 500 feet of each manufactured home. All such fire hydrants shall be connected to not less than an eight-inch diameter water line.
(f)
Every manufactured home park shall comply with the provisions of the City's floodplain ordinance.
(g)
Manufactured homes and manufactured home parks shall only be located in B-2 zoning districts and they shall be required to comply with all of the A-2 Single-Family Residential District construction and use requirements.
(Ord. No. 100-09-12, § I, 10-22-2012)
(a)
Community Homes for Disabled Persons are allowed in A-1, A-2, A-3, A-4, A-5 PUD, CE and MXD Single-Family Dwelling Districts.
(1)
Residents of a Community Home for Disabled persons may not keep for the use of the residents of the home, either on the premises of the home or on a public right-of-way adjacent to the home, motor vehicles in numbers that exceed the number of bedrooms in the home.
(Ord. No. 0-2014-023, § I, 11-17-2014)
(a)
General. Home occupations shall be permitted in all residential zoning districts, provided the home occupation is clearly and obviously subordinate to the main use of dwelling for residential purposes and is not prohibited by subsection (c) and complies with the conditions set forth in subsection (b). Standards for controlling home occupations are set forth to minimize annoyance and inconvenience to neighboring property owners within residential areas. These standards are intended to allow reasonable and comfortable enjoyment of adjacent and nearby property by their owners and by occupants of neighboring residential dwellings, while providing opportunities for the pursuit of home-based businesses. Administrative, office and clerical functions performed at a residence by members of the family occupying the dwelling are specifically allowed and are not considered a home occupation.
(b)
Conditions.
(1)
The home occupation must be compatible with the residential use of the property and surrounding residential uses and not alter the residential character of the premises by reason of activity, color, design, materials, storage, construction, lighting, sounds, noises, vibrations, dust, odors, noxious fumes, etc., nor shall it unreasonably disturb the peace and quiet of an individual and/or the residential neighborhood, nor interfere with the area radio or television reception;
(2)
The home occupation must be confined completely within the dwelling and/or a single accessory building. The home occupation shall not occupy more than 25 percent of the gross floor area of one floor of the primary residential dwelling thereof;
(3)
The home occupation may only be carried on by members of the family occupying the dwelling, with the exception of one other person either by employment or as an independent contractor;
(4)
The home occupation must not generate pedestrian or vehicular traffic in excess of five visits a day, with not more than two client vehicles at the premises at any one time;
(5)
The home occupation shall require no exterior structural, electrical or plumbing alterations to the dwelling;
(6)
The home occupation may not involve outdoor storage or on-premises outdoor signage or advertising;
(7)
The home occupation must not generate any solid waste or sewage discharge, in volume or type, which is not normally associated with residential use in the neighborhood;
(8)
On-premises parking of commercial vehicles, as defined in section 36-1, used in conjunction with the home occupation is prohibited, except as provided in section 36-36(b)(1) and section 36-36(b)(2); and
(9)
On-premises retail sales are prohibited.
(c)
Prohibited home occupations. Examples of prohibited home occupations include the following:
(1)
Barbershops;
(2)
Beauty shops;
(3)
Commercial auto or boat sales, repair or maintenance;
(4)
Auto painting;
(5)
Sexually oriented businesses;
(6)
Restaurants;
(7)
Catering, or the preparation of food for resale except for Cottage Food Operations as that term is defined by the Tex. Health and Safety Code § 437.001; and
(8)
Animal hospitals and kennels.
(Ord. No. 0-2015-021, § III, 12-21-2015; Ord. No. O-2020-010, § II, 8-24-2020)
A portable on-demand storage structure may be utilized as a temporary structure within the City when in compliance with the standards of this subsection. Any use of such structures within the City not in compliance with this subsection shall be unlawful.
(a)
Permit. No person shall store, maintain or otherwise keep a portable on-demand storage structure on any lot or parcel of property within the City of Shavano Park without first having obtained and possessing an active permit issued by the City. Permits are valid for 60 days. Upon request from the permit holder, the City Manager may grant one 30-day extension of said permit with no permit to exceed 90 total days. Permit period shall start from the date the PODS is stored, maintained or otherwise kept on said permit holder's property.
(b)
Terms of Use. Portable on-demand storage structures may be installed in all zoning districts with the following restrictions:
(1)
No portable on-demand storage structure can be stacked on top of one another or on top of any other object;
(2)
No portable on-demand storage structures shall be used for human habitation or commercial business purposes:
(3)
Any portable on-demand storage structure shall be secure, structurally sound, stable and in good repair;
(4)
No portable on-demand storage structure shall be used to store hazardous materials; and
(5)
No portable on-demand storage structure shall be used to store refuse or debris.
(c)
Revocation. Any permit issued under this section may be revoked upon ten days' written notice to the owner, occupant or person in control of the property if such person is storing, maintaining, or otherwise keeping a portable on-demand storage structure in violation of this section.
(d)
Fees. The permit described in this subsection shall have no City fee associated with it.
(Ord. No. 0-2017-001, § V, 9-18-2017; Ord. No. O-2021-013, § I, 11-22-2021)
- DISTRICTS
For the purpose of this chapter, the City is hereby divided into zoning districts as follows:
(Ord. No. 100-02-08, § I(exh. A, § III(A)), 8-12-2008; Ord. No. 100-06-11, § I, 5-17-2011)
The location and boundaries of each of the districts herein established are shown on the official Zoning District Map, which is hereby incorporated into this chapter. The Zoning District Map, together with all notations, references and other information shown thereon and all amendments thereto, is hereby adopted and approved, incorporated herein and made a part hereof and collectively shall constitute the official Zoning District Map, and shall be as much a part of this chapter as if fully set forth and described herein. The Zoning District Map, properly attested, is on file in the office of the City Secretary.
(Ord. No. 100-02-08, § I(exh. A, § III(B)), 8-12-2008; Ord. No. 300-07-12, § I(2), 9-24-2012)
Where uncertainty exists with respect to the boundaries of any of the districts described above and as shown on the Zoning District Map, the following rules shall apply:
(1)
Where district boundaries are indicated as approximately following the right-of-way lines or centerline of streets, alleys or highway rights-of-way, such right-of-way lines or centerline of streets, alleys, or highway rights-of-way shall be construed to be the boundaries.
(2)
Where district boundaries are indicated that they approximately follow the lot lines, such lot lines shall be construed to be the boundaries.
(3)
Where district boundaries are so indicated that they are approximately parallel to the centerline of street lines of streets, or highways, such district boundaries shall be construed as being parallel to the centerline of such streets or highways and at such distance there from as indicated on the Zoning District Map. If no distance is given, such dimension shall be determined by use of the scale appearing on the Zoning District Map.
(4)
The district boundary lines on the Zoning District Map shall be determined by the scale appearing on the Zoning District Map.
(5)
In the case of a district boundary line dividing a property into two parts, the district boundary line shall be determined by use of the scale appearing on the Zoning District Map.
(6)
Whenever any street, alley, or other public way is vacated by official action of the City Council, the zoning district adjoining each side of such street, alley or public way shall be automatically extended to the center of such vacated area, and the vacated area shall then and henceforth be subject to all regulations of the respective extended districts.
(7)
Where the streets or alleys on the ground differ from the streets or alleys shown on the Zoning District Map, the streets or alleys as existing on the ground shall control.
(Ord. No. 100-02-08, § I(exh. A, § III(C)), 8-12-2008)
The regulations herein established shall apply uniformly to all areas having the same district classification and bearing the same designation on the Zoning District Map.
(Ord. No. 100-02-08, § I(exh. A, § III(D)), 8-12-2008)
Property which is within the extraterritorial jurisdiction (ETJ) and is contiguous to the existing limits of the City may be annexed prior to, concurrent with, or subsequent to development and/or subdivision. The owner is required to submit to the City a petition requesting annexation which is in compliance with all provisions of the Tex. Local Government Code §§ 43.025 and 43.028. Property so annexed will be temporarily zoned A-2 Single-Family Residential subject to any prior nonconforming use, provided that the owner(s) of property being annexed to the City may apply for zoning on such property on or after the date on which such annexation proceedings are initiated, and such zoning approval may be effective as of the effective date of such annexation.
(Ord. No. 100-02-08, § I(exh. A, § III(E)), 8-12-2008)
(a)
Use regulations. In A-1, A-2, A-3, A-4 and A-5 PUD Single-Family Residential Districts, no land shall be used and no building shall be erected for or converted to any use other than as a single-family residence. In addition, the following structures shall also be allowed together with the single-family residence:
(1)
Accessory buildings and structures under the following conditions:
a.
Size limitations.
i.
The gross floor area of all accessory buildings and structures shall not occupy more than 20 percent of the rear yard.
ii.
In no case shall any accessory building be built closer than ten feet to the principal main building. The height of an accessory building or structure shall not exceed one story.
b.
Location limitations.
i.
Accessory buildings or structures greater than eight feet in height are disallowed within building setback lines.
ii.
Accessory buildings or structures less than eight feet in height are allowed within a side or rear setback if the adjacent property line(s) are screened by a solid fence.
c.
An unattached garage, as described in section 36-36(f) and section 6-91 is regulated as an accessory building.
d.
One accessory building may be used as a dwelling unit as long as the use is consistent with the use of the property as a single-family residence.
e.
One accessory building may be used for long-term rental as long as the use is consistent with the use of the property as a single-family residence.
f.
Accessory structures may not be used for parking or storage of vehicles. See section 36-36(f) for the City's garage and carport regulations.
(2)
Portable construction buildings under the following conditions:
a.
Authorization may be issued by the City Building Official to permit a portable construction building to be temporarily located on a lot upon which a building permit has been previously issued for construction of any building or structure.
b.
A certificate of occupancy related to construction shall not be issued by the City Building Official until the portable construction building has been removed from the premises and further, that the certificate of occupancy shall not be issued until the electrical connection which served the portable construction building has been removed from the lot in question.
c.
A temporary permit issued pursuant to this section shall be void upon issuance of the certificate of occupancy, or 12 months after issuance of the building permit, whichever time is shorter.
d.
In any case in which construction is not completed within the 12-month period, the City Building Official, after due consideration and determination that active construction is being accomplished, may issue an extension of time for the temporary permit, not to exceed a six-month period.
(3)
Swimming pools pursuant to the International Swimming Pool and Spa Code adopted by the City under section 6-9 and pool regulations under section 6-96 and any other applicable City regulations;
(4)
Sport Courts pursuant the City's sport court regulations under 6-104 and any other applicable City regulations; and
(5)
Entryway features and the front setback. Porches or porte cocheres at the front of a residence are only allowed to extend from the primary residence into the front setback under the following conditions:
a.
A porte cochere must be attached to the main building, remain open on three sides and shall not extend more than 30 feet from the main building nor shall project more than 25 feet into the front setback. See section 36-1 for full definition of a porte cochere.
b.
Only an open porch that is open on a minimum of three sides and no wider than 25 feet may project into the front setback. An open porch shall not project more than ten feet into the front setback. See section 36-1 for full definition of a porch.
c.
A porte cochere located at the front of a residence shall not be used for long-term storage of vehicles and is not considered a carport.
(b)
Storage or parking of recreational/commercial and covered vehicles/equipment. Storage or parking of recreational/commercial and covered vehicles/equipment is prohibited in all residential districts, except as follows:
(1)
When the recreational/commercial vehicle is used for the primary transportation of the owner;
(2)
When such vehicles and equipment are placed within a completely enclosed building on any residential lot;
(3)
Any such vehicle of eight feet or less in height may be placed on a residential lot behind the dwelling unit, including upon side setbacks, so long as such vehicle is properly screened from the street view of the front property line by either a fence or screening device;
(4)
When any such vehicle exceeds eight feet in height, it may be placed on a residential lot only if the residential lot is greater than 0.7 acres, and if such vehicle is properly screened from view by a fence or a screening device that is at least eight feet in height. In addition, the vehicle must be placed behind the front face of the dwelling unit. Side and rear setbacks may be used provided that a five-foot side and rear setback be maintained at all times;
(5)
Temporary open parking of one recreational vehicle or one piece of recreational equipment in the front yard is allowed for no more than four days at a time but total open parking time in any given month shall not exceed eight days to allow for customary loading/unloading, cleaning and maintenance.
(c)
Parking or storage of motor vehicles in a front, side or rear yard. Parking or storage of motor vehicles in a front, side or rear yard is prohibited outside of garage spaces, carports, driveways, or additional all-weather surfaces as regulated under sections 36-36(f) and 36-36(g). The parking or storage of motor vehicles on an unimproved surface for more than 24 hours is strictly prohibited.
(d)
Other use regulations. See Table No. 1.
(e)
Exterior architectural features. Each new structure must possess an exterior in keeping with the residence and general atmosphere of the surrounding area.
(1)
Exterior walls in A-1 Districts. The City of Shavano Park recommends exterior walls of residences in areas zoned in A-1 to have a minimum of 60 percent masonry, exclusive of openings.
(2)
Exterior walls A-2, A-3, A-4 and A-5 PUD. The City of Shavano Park recommends exterior walls of residences to have a minimum of 75 percent masonry, exclusive of openings. Perm stone or asbestos shingles, concrete block and cinder block, and metal exterior wall coverings, are not recommended except that concrete and cinder blocks may be used structurally if faced with rock, brick or stucco in accordance with the International Building Code most recently adopted by the City of Shavano Park.
(3)
If a variance or other waiver from any related code, including this chapter, is requested, exterior architectural features may be a required condition of approval.
(f)
Garages and carports.
(1)
Garages. A minimum two-car garage shall be provided at each residence. Residential garage doors are not to exceed ten feet in height. An additional garage may be provided as an accessory building pursuant to regulations in section 36-36(a). No garage shall open onto any street, roadway or cul-de-sac unless the lot in question fronts two streets which will allow the garage to face the street perpendicular to the front of the residential structure. In the A-1 District a front facing garage may be constructed if it is substantially screened by a screening device to not be visible from the public street as determined by the Building Official. Except as provided, attached garages shall be rear or 90-degree side loaded. Conversion of an existing garage to another use shall be permitted only where replacement garage space is provided. Doors on secondary garages for the purpose of storing recreational vehicles may be of a height necessary to store the vehicle. Detached garages shall conform to building setback lines and structural regulations and may or may not face the street final decision is the Building Official's decision), but may not be substantially visible from the street.
(2)
Carports. Carports may not, under any circumstances, be substituted for garage space. No carport may open on any street, roadway or cul-de-sac. In situations where a lot fronts two streets and the garage opens to the street perpendicular to the front of the structure, no carport will be allowed. All carports shall conform to all building setback lines, structural regulations and be rear or 90-degree loaded. All carports must be built in conjunction with existing garage space and not as freestanding structures. A porte cochere is not considered a carport.
(g)
Driveways and Additional All-weather Parking Surfaces.
(1)
Driveways. In all residential zoning districts, a driveway shall be provided for each residential lot from an authorized curb cut to the primary residence and/or the residence's front door, garage space (detached or attached), or carport. Driveway shall be, at minimum, of sufficient size to accommodate two motor cars for each dwelling unit. Driveways shall not be extended to additional all-weather parking surfaces on a residential lot that are nonadjacent to an existing driveway.
(2)
Additional All-weather Parking Surfaces. In addition to a residential driveway, residential lots greater than 0.9 acre in size are allowed to construct additional all-weather surfaces for vehicular parking under the following conditions:
a.
Additional All-weather surfaces cannot be placed in the front yard. Only side and rear yards are allowed.
b.
Additional All-weather surfaces shall not be placed within building setback lines.
c.
The additional all-weather surface must be at least three inches in thickness after compaction. Any base material is included in this measurement.
d.
Additional All-weather surfaces cannot be covered by a structure. See section 36-36(f) for the City's garage and carport regulations.
e.
Additional All-weather surfaces shall not be placed in a drainage easement or floodplain and shall not be built in such a way that it increases storm water flow onto neighboring properties as determined by the City Building Official.
f.
Additional All-weather surfaces are limited to 600 square feet in size on 0.9 to 1.9 acre lots; limited to 800 square feet on 1.9 to 2.9 acre lots and limited to 1,000 square feet on lots greater than 2.9 acres in size. Residential driveways shall not be included in this size calculation.
g.
Additional All-weather surfaces must be screened so as to be obscured from view on a public street as determined by the City Building Official.
h.
Additional All-weather surfaces shall not be used for long-term storage of inoperable or junk vehicles as defined by section 32-155 of the City's Code of Ordinances.
(h)
Fences.
(1)
All fences, including screening walls, shall meet the following conditions:
a.
Fences shall be constructed of masonry, brick, stone, concrete, solid metal, wrought iron-style metal and/or rot resistant wood materials. No fence material shall be thinner than one-half inch thickness. In the A-1 district chainlink and hog wire style fences are additionally permitted, excepting all A-1 district lots in the NW Military Highway (FM 1535) Urban Corridor. For detailed fence regulations of the Urban Corridor of NW Military Highway see section 6-133.
b.
Fences shall have colors that are aesthetically consistent with the surrounding area as determined by the Building Official during the permit and plan review process.
c.
No fence shall be higher than eight feet above grade.
d.
In no event shall a fence's base width exceed 36 inches.
e.
Fences must be constructed in such a way that does not change the natural drainage of water, as determined by the Building Official during the permit and plan review process.
f.
Fences shall not be constructed in such a way as to obstruct roadway intersection sight lines defined under section 28-125.
g.
Fences shall not be constructed in a public right-of-way. Fences crossing public easements must provide gates allowing public access.
h.
Fences shall not be energized to create an electrical circuit.
i.
Driveway gates shall have a minimum of a 12-foot opening for emergency vehicle access.
j.
Front fences must not enclose any fire hydrant that may be present.
(2)
Open or solid side and rear fencing is allowed in all residential zoning districts provided they meet the regulations of section 36-36(h)(1).
(3)
Open or solid front fencing to the front edge of the residence is allowed in all residential zoning districts provided they meet the regulations of section 36-36(h)(1).
(4)
Open front and side fencing past the front edge of the residence is allowed in A-1 and A-1 PUD (Huntington) zoning districts provided the fence meets the following, as well as the regulations of section 36-36(h)(1):
a.
Chainlink and hog wire style front fences are prohibited in Urban Corridor of NW Military Highway, see section 6-133 for detailed regulations.
b.
Front masonry landscape structures on both sides of the primary driveway entrance to the property that are not higher than eight feet above grade or greater than 25 feet in length are not considered solid front fencing and are permitted.
(5)
Solid front and side fencing past the front edge of the residence is allowed in A-1 PUD (Huntington) zoning district provided it meets the regulations of section 36-36(h)(1).
(6)
For any residential property within the City limits with a side or rear yard abutting one or more of the City streets known as Lockhill Selma Road and Huebner Road (where such property presently has a solid masonry fence (i.e. a wall) along or parallel to one or more of such streets), such property owner may not construct a gate or other opening to their side or rear yard. Any property with an existing gate as of (October 1, 2020) on property lines described above is considered a non-conforming use and may continue to exist. See section 6-133 for similar regulations for the Urban Corridor of NW Military Highway.
(7)
A summary of the fence regulations by zoning district is presented in the following table:
(i)
Height regulations. No residential building shall exceed the maximum vertical height specified in Tables 1, 2 and 6 of this chapter, and no residential building shall have more than two livable stories.
(j)
Portable buildings. Except in A-I District, a single unattached portable building (movable) constructed of light metal, wood or fiberglass used for storage only, not greater than 200 square feet in size may be erected in the rear or side yard providing the building is suitably screened from adjacent property, is not used temporarily or permanently as a habitation, and is unattached to a solid foundation. The highest point of the building may not exceed 12 feet from foundation. No portable building higher than eight feet in height measured from grade level base foundation to the buildings highest point shall be permitted in the building setbacks. In A-I District no more than two unattached portable buildings described in this subsection shall be permitted.
(k)
All liquefied petroleum gas (LPG) tanks sized greater than 100 pounds shall be installed in accordance with the National Fire Protection Association (NFPA) 58, Liquefied Petroleum Gas Code, as detailed in the Tex. Administrative Code, title 16, rule 9.142. LPG tanks shall be installed as provided in this section:
a.
To avoid possible conflicts with the State's adopted national codes under Tex. Nat. Res. Code § 113.052, the NFPA 58, Liquefied Petroleum Gas Code 6.4.1.1, and the International Fire Code, LPG tanks shall not be installed within ten feet of a property line.
b.
Any LPG tank installed within ten feet of the property line shall require a Fire Inspection by the Fire Marshal of the City of Shavano Park to ascertain the health and safety of such an installation near the property line. The City may elect to petition the Railroad Commission's executive director for permission to promulgate more restrictive rules and standards pursuant to Tex. Nat. Res. Code § 113.054.
c.
All LPG tanks constructed in front yard or side yard require a screening device erected to block view from the street.
(l)
Certain equipment allowed in setbacks. Notwithstanding any other provision found within the City of Shavano Park Code of Ordinances, HVAC equipment, generators and pool equipment are allowed within setbacks, so long as an unobstructed width of five feet exists to allow for emergency services access.
(Ord. No. 100-02-08, § I(exh. A, § IV), 8-12-2008; Ord. No. 100-07-09, § 1, 11-17-2009; Ord. No. 100-08-09, § [1], 11-17-2009; Ord. No. 100-03-10, § 1, 11-16-2010; Ord. No. 100-05-11, § 1, 5-17-2011; Ord. No. 100-10-12, § I, 10-22-2012; Ord. No. 0-2015-021, § I, 12-21-2015; Ord. No. 0-2017-001, § IV, 9-18-2017; Ord. No. O-2019-014, § V, 11-25-2019; Ord. No. O-2019-018, § III, 12-9-2019; Ord. No. O-2020-010, § I, 8-24-2020; Ord. No. O-2020-013, § IX, 9-21-2020; Ord. No. O-2021-001, § I, 2-22-2021; Ord. No. O-2022-007, § III, 9-19-2022; Ord. No. O-2024-004, § II, 8-26-2024; Ord. No. O-2025-005, § VIII, 5-19-2025)
(a)
Use regulations.
(1)
In a CE Single-Family Cottage Estates Residential Districts, no land shall be used for any purpose other than a single-family residence and related amenity purposes.
(2)
Accessory buildings under the following conditions:
a.
Size limitations.
i.
The gross floor area of all accessory buildings shall not occupy more than 20 percent of the rear yard.
ii.
In no case shall any accessory building be built closer than ten feet to the principal main building. The height of an accessory building shall not exceed one story.
b.
Location limitations.
i.
Accessory buildings greater than eight feet in height are disallowed within building setback lines.
ii.
Accessory buildings less than eight feet in height are allowed within a side or rear setback if the adjacent property line(s) are enclosed by an eight-foot solid fence.
(3)
Garages. A minimum two-car garage shall be provided for each residence. An additional garage may be provided as an accessory building pursuant to regulations in section 36-36(a)(2). No garage shall open onto any street, roadway or cul-de-sac unless the lot in question fronts two streets which will allow the garage to face the street perpendicular to the front of the residential structure. All attached garages shall be rear or 90-degree side loaded. Conversion of an existing garage to another use shall be permitted only where replacement garage space is provided. Doors on secondary garages for the purpose of storing recreational vehicles may be of a height necessary to store the vehicle. Detached garages shall conform to building setback lines and structural regulations and may or may not face the street final decision is the Building Official's decision), but may not be substantially visible from the street.
(4)
A driveway shall be provided for each residential lot from an authorized curb cut to the primary residence and/or the residence's front door, garage space (detached or attached) or carport. Driveway shall be, at minimum, of sufficient size to accommodate two motor cars for each dwelling unit. Driveways shall not be extended to additional all-weather parking surfaces on a residential lot that are nonadjacent to an existing driveway.
(5)
Swimming pools pursuant the City's adopted International Swimming Pool and Spa Code under section 6-9 and regulations under section 6-96 and any other applicable City regulations.
(6)
Sport Courts pursuant the City's regulations under section 6-104 and any other applicable City regulations.
(7)
Entryway features and the front setback. Porches or porte cocheres at the front of a residence are only allowed to extend from the primary residence into the front setback under the following conditions:
a.
A porte cochere must be attached to the main building, remain open on three sides and shall not extend more than 30 feet from the main building nor shall project more than 25 feet into the front setback. See section 36-1 for full definition of a porte cochere.
b.
Only an open porch that is open on a minimum of three sides and no wider than 25 feet may project into the front setback. An open porch shall not project more than ten feet into the front setback. See section 36-1 for full definition of a porch.
c.
A porte cochere located at the front of a residence shall not be used for long-term storage of vehicles and is not considered a carport.
(b)
Density regulations. No more than four dwelling units may be constructed per gross acre of land within each CE Zoning District.
(c)
Other use regulations. See Table No. 2.
(d)
Exterior architectural features.
(1)
Each new structure must possess an exterior in keeping with the residence and general atmosphere of the surrounding area.
(2)
Exterior walls. The City of Shavano Park recommends exterior walls of residences to have a minimum of 90 percent masonry, exclusive of openings. Perm stone or asbestos shingles, concrete block, metal panels, metal curtain walls and cinder block are not recommended except that concrete and cinder blocks may be used structurally if faced with rock, brick or stucco, in accordance with the International Building Code most recently adopted by the City.
(3)
If a variance or other waiver from any related code, including this chapter, is requested, exterior architectural features may be a required condition of approval.
(e)
Height regulations. No residential building shall exceed two livable stories in height and the permitted maximum vertical height shall not exceed the height specified in Tables 1, 2 and 6 of this chapter.
(f)
Storage or parking of recreational/commercial and covered vehicles/equipment. Storage or parking of recreational/commercial and covered vehicles/equipment is prohibited in all residential districts, except as follows:
(1)
When the reactional/commercial vehicle is used for the primary transportation of the owner;
(2)
When such vehicles and equipment are placed within a completely enclosed building on any residential lot;
(3)
Any such vehicle that is eight feet or less in height may be placed on a residential lot behind the dwelling unit, including upon side setbacks, if such vehicle is properly screened from the view from the front property line by either a fence or screening device;
(4)
When any such vehicle is greater than eight feet in height, it may be placed on a residential lot only if that lot is greater than 0.7 acres, and if such vehicle is properly screened from view by a fence or a screening device that is at least eight feet in height. In addition, the vehicle must be placed behind the front face of the dwelling unit. Side and rear setbacks may be used only so long as a five-foot side and rear setback be maintained at all times;
(5)
Temporary open parking of one recreational vehicle or one piece of recreational equipment in the front yard is allowed for no more than four days at a time but total open parking time in any given month shall not exceed eight days to allow for customary loading/unloading, cleaning and maintenance.
(g)
All liquefied petroleum gas (LPG) tanks sized greater than 100 pounds shall be installed in accordance with the National Fire Protection Association (NFPA) 58, Liquefied Petroleum Gas Code, as detailed in the Tex. Administrative Code, title 16, rule 9.142. LPG tanks shall be installed as provided in this section:
a.
To avoid possible conflicts with the State's adopted national codes under Tex. Nat. Res. Code § 113.052, the NFPA 58, Liquefied Petroleum Gas Code 6.4.1.1, and the International Fire Code, LPG tanks shall not be installed within ten feet of a property line.
b.
Any LPG tank installed within ten feet of the property line shall require a Fire Inspection by the Fire Marshal of the City of Shavano Park to ascertain the health and safety of such an installation near the property line. The City may elect to petition the Railroad Commission's executive director for permission to promulgate more restrictive rules and standards pursuant to Tex. Nat. Res. Code § 113.054.
c.
All LPG tanks constructed in front yard or side yard require a screening device erected to block view from the street.
(h)
Certain equipment allowed in setbacks. Notwithstanding any other provision found within the City of Shavano Park Code of Ordinances, HVAC equipment, generators and pool equipment are allowed within setbacks, so long as an unobstructed width of five feet exists to allow for emergency services access.
(Ord. No. 100-02-08, § I(exh. A, § V), 8-12-2008; Ord. No. 100-05-11, § 1, 5-17-2011; Ord. No. 0-2015-021, § II, 12-21-2015; Ord. No. 0-2017-001, § V, 9-18-2017; Ord. No. O-2019-018, § IV, 12-9-2019; Ord. No. O-2021-001, § II, 2-22-2021; Ord. No. O-2022-007, § IV, 9-19-2022; Ord. No. O-2024-004, § III, 8-26-2024; Ord. No. O-2025-005, § VIII, 5-19-2025)
Use regulations. In a M-U Municipal and Utility District, the land and any improvements thereon shall be used solely for municipal offices; fire and police stations; municipal repair, maintenance and storage facilities; governmental or private emergency relief facilities; telephone exchange, without business offices; electrical utility facilities and related, electrical energy facilities, transformers, relay and substations, poles and wires; natural gas handling and regulating stations, and common, private and public utility pipelines subject to the approval required under other ordinances; and community recreational maintenance facilities, and generating facilities. No land shall be used for residential or commercial purposes.
Certain equipment allowed in setbacks. Notwithstanding any other provision found within the City of Shavano Park Code of Ordinances, HVAC equipment and pool equipment are allowed within setbacks, so long as an unobstructed width of five feet exists to allow for emergency services access.
(Ord. No. 100-02-08, § I(exh. A, § VI), 8-12-2008; Ord. No. 100-05-11, § 1, 5-17-2011)
All business and office districts shall be governed by the following regulations.
(1)
General requirements. The following regulations shall apply to all property within the O-1, B-1 and B-2 zoning districts:
a.
Parking.
1.
Composition. Off street parking facilities graded for drainage and surfaced of concrete, asphaltic concrete or asphalt shall be located on the lot on which the user is located.
2.
Compact parking. Compact parking spaces are not an allowed use in any business and office district and will only be considered through a Planned Unit Development as described under section 36-40.
3.
Ingress/egress and lane width.
(i)
Ingress/egress shall be provided for each parking space. All circulation shall be internal with a minimum of 24-foot-wide lanes for maneuvering areas.
(ii)
Ratio to building area. Parking stalls shall be provided so as to maintain a ratio of at least one space (stall) per the number of square feet of gross building area specified in Table No. 6.
4.
Landscaping buffer. A landscaped buffer shall be maintained in accordance with Table No. 6. In addition to any other landscape buffer requirement, a container grown tree having a trunk diameter of at least three inches and a minimum height of ten feet with 100 square feet of planting shall be present for each ten parking spaces. All such trees shall be within planting areas having a width of at least five feet.
5.
Covered parking. Covered parking shall only be permitted in a fully enclosed garage or in a carport meeting the criteria listed below. In no event shall this section be construed as to allow carports in single-family residential areas.
(i)
Carports shall be set back from the front building wall at a distance of not less than 25 percent of the length of the side building wall. See illustration below.
(ii)
Carports visible from public right of ways shall have a solid masonry end wall on the portion of the carport facing the public right of way. The end wall shall be constructed with masonry that matches that of the primary structure.
(iii)
Carports shall have support columns constructed of steel and roofs constructed of standing seam metal rated at 20 gauge or higher. Roofs shall be constructed at a minimum pitch ratio of three to 12.
(iv)
Carports shall only be permitted in the shaded areas on the illustration below.
b.
Exterior walls. The City of Shavano Park recommends exterior walls to have a minimum of 90 percent masonry construction of a residential character, exclusive of openings. Perm stone or asbestos shingles, concrete block and cinder block are not recommended except that concrete and cinder blocks may be used structurally if faced with rock, brick or stucco, in accordance with the International Building Code most recently adopted by the City. If a variance or other waiver from any related code, including this chapter, is requested, exterior architectural features may be a required condition of approval.
(2)
Setbacks.
a.
Certain equipment allowed. Notwithstanding any other provision found within the City of Shavano Park Code of Ordinances, HVAC equipment, generators and pool equipment are allowed within setbacks, so long as an unobstructed width of five feet exists to allow for emergency services access.
b.
Other use regulations. See Table No. 6.
(3)
Permitted uses. Except as otherwise allowed by this chapter, only the uses listed on Table No. 3, Table No. 4, or Table No. 5 are permitted in zoning districts 0-1, B-1 and B-2, respectively.
(4)
Electric Vehicle (EV) Charging Stations.
a.
All permitted uses under B-1, B-2, 0-1 business & office districts shall be allowed to install up to 2 EV Charging Stations of Level 2 or Level 3 capability as an accessory use for each primary commercial building for use by its employees or the public. Level 1 charging stations are prohibited.
b.
All EV Charging Stations require and must be installed meeting the requirements of the National Electric Code as adopted under section 6-7 of the City of Shavano Park Code of Ordinances. All EV Charging Stations require an electric permit and a Fire Marshal fire safety plan review & inspection from the City.
c.
Any business that installs more than 2 EV Charging Stations requires a Special Use Permit approved by the City Council. Businesses in the 0-1 District are not eligible for an EV Charging Station Special Use Permit and shall not install more than 2 EV Charging Stations.
d.
Businesses which add EV charging stations to an existing parking space, do not violate any restrictions on the number of mandatory parking spaces, if those EV Charging Stations are available for public use. Any EV Charging Stations added to existing parking spaces that restrict the usage (to employees or executives for example) are deducted from the required Parking Stall Ratio for the business under Chapter 36, Article VI, Table No. 6. Any EV Charging Station Permit which reduces the number of parking spaces below the minimum Parking Stall Ratio will not be approved since those lost parking spaces for the public will lower the number of overall available parking spaces.
e.
Public EV Charging Stations must state their electric charging rates either with posted signage, digital display or a digital application.
f.
Un-attended overnight charging of vehicles at an EV Charging Station between the hours of 11:00 a.m. and 5:00 a.m. is prohibited and violators may be cited, Each EV Charging Station will require a sign placed stating this prohibition.
g.
City staff shall provide a monthly report to City Council on the number of EV charging stations permitted in that given month.
(5)
Other regulations.
a.
Sanitary sewer. All permitted uses under B-1, B-2 and O-1 shall be connected to a public sanitary sewer system to insure proper disposal of waste.
b.
Edwards recharge zone. All land use or development occurring in the Edwards Aquifer recharge zone, or watersheds draining into the recharge zone, must comply with applicable requirements prescribed by the Texas Natural Resources Conservation Commission ("TNRCC") regarding the production of products or waste which could adversely affect the water supply if introduced into the aquifer through the recharge zone.
c.
Display signs. All signs shall conform to the sign criteria set forth in chapter 24 of the Code of Ordinances of the City of Shavano Park, as may be amended from time to time.
d.
Portable construction buildings. Portable construction buildings are only allowable under the following conditions:
1.
Authorization may be issued by the City Building Official to permit a portable construction building to be temporarily located on a lot upon which a building permit has been previously issued for construction of any building or structure.
2.
A certificate of occupancy related to construction shall not be issued by the City Building Official until the portable construction building has been removed from the premises and further, that the certificate of occupancy shall not be issued until the electrical connection which served the portable construction building has been removed from the lot in question.
3.
A temporary permit issued pursuant to this section shall be void upon issuance of the certificate of occupancy, or 12 months after issuance of the building permit, whichever time is shorter.
4.
In any case in which construction is not completed within the 12-month period, the City Building Official, after due consideration and determination that active construction is being accomplished, may issue an extension of time for the temporary permit, not to exceed a six-month period.
e.
All liquefied petroleum gas (LPG) tanks sized greater than 100 pounds shall be installed in accordance with the National Fire Protection Association (NFPA) 58, Liquefied Petroleum Gas Code, as detailed in the Tex. Administrative Code, title 16, rule 9.142. LPG tanks shall be installed as provided in this section:
1.
To avoid possible conflicts with the State's adopted national codes under Tex. Nat. Res. Code § 113.052, the NFPA 58, Liquefied Petroleum Gas Code 6.4.1.1, and the International Fire Code, LPG tanks shall not be installed within ten feet of a property line.
2.
Any LPG tank installed within ten feet of the property line shall require a Fire Inspection by the Fire Marshal of the City of Shavano Park to ascertain the health and safety of such an installation near the property line. The City may elect to petition the Railroad Commission's executive director for permission to promulgate more restrictive rules and standards pursuant to Tex. Nat. Res. Code § 113.054.
3.
All LPG tanks constructed in front yard or side yard require a screening device erected to block view from the street.
(6)
O-1 Office District.
a.
Use regulations. This district is composed of land and structures occupied by or suitable for general office use only.
b.
Other regulations.
1.
See Table No. 6.
2.
Accessory buildings. No accessory buildings may occupy more than 30 percent of the rear yard area nor shall the gross floor area of all accessory buildings on one lot exceed 50 percent of the gross floor area of the principal building structure thereon, exclusive of breezeways and attached garage; provided, however, that this regulation shall not reduce the gross total floor area of all necessary accessory buildings on one lot to less than 400 square feet and in no case shall any accessory building be built closer than ten feet to the principal main building. The height of an accessory building shall not exceed one story.
(7)
B-1 Business District.
a.
Use regulations.
1.
This district is composed of light commercial uses, provided all business activities, except for outdoor dining and Convenience Store activities, (including outdoor pay at the pump gasoline sales and stand-alone self-service car wash), are completely contained within an enclosed structure or court.
2.
Except as otherwise allowed by this chapter, only the uses specified on Table No. 4 are permitted in the B-1 Business District.
b.
Other regulations.
1.
See Table No. 6.
2.
Accessory buildings. No accessory buildings may occupy more than 30 percent of the rear yard area nor shall the gross floor area of all accessory buildings on one lot exceed 50 percent of the gross floor area of the principal building structure thereon, exclusive of breezeways and attached garage; provided, however, that this regulation shall not reduce the gross total floor area of all necessary accessory buildings on one lot to less than 400 square feet and in no case shall any accessory building be built closer than ten feet to the principal main building. The height of an accessory building shall not exceed one story.
(8)
B-2 Business District.
a.
Use regulations.
1.
This district allows for general commercial uses, provided all business activities, except for outdoor dining and Convenience Store activities, (including outdoor pay at the pump gasoline sales and stand-alone self-service car wash), are completely contained within an enclosed structure or court.
2.
Except as otherwise allowed by this chapter, only the uses specified on Table No. 5 are permitted in the B-2 Business District.
b.
Other regulations.
1.
See Table No. 6.
2.
Accessory buildings. All accessory buildings may not occupy more than 30 percent of the rear yard area nor shall the gross floor area of all accessory buildings on one lot exceed 50 percent of the gross floor area of the principal building structure thereon, exclusive of breezeways and attached garage; provided, however, that this regulation shall not reduce the gross total floor area of all necessary accessory buildings on one lot to less than 400 square feet and in no case shall any accessory building be built closer than ten feet to the principal main building. The height of an accessory building shall not exceed one story.
(Ord. No. 100-02-08, § I(exh. A, § VII), 8-12-2008; Ord. No. 100-05-11, § 1, 5-17-2011; Ord. No. 100-12-11, § I, 12-19-2011; Ord. No. 100-13-12, § I, 12-17-2012; Ord. No. 0-2013-001, § I, 4-22-2013; Ord. No. 0-2015-003, § I, 2-23-2015; Ord. No. 0-2016-010, § III, 10-24-2016; Ord. No. O-2019-018, § V, 12-9-2019; Ord. No. O-2022-007, § IV, 9-19-2022; Ord. No. O-2025-005, § IX, 5-19-2025; Ord. No. O-2025-009, § II, 6-23-2025)
(a)
Purpose. The Planned Unit Development District (PUD District) is a free-standing district designed to provide for the development of land as an integral unit for single or mixed uses in accordance with a plan that may vary from the established regulations of other zoning districts. It is the intent in such a district to insure compliance with good zoning practices while allowing certain desirable departures from the strict provisions of specific zoning classifications.
(b)
Application. An application for a planned unit development district shall be processed in accordance with this chapter. A pre-planning conference is required between the applicant and the City prior to the actual filing of the application.
(c)
Base district. A base zoning district shall be specified. The regulations in the base zoning district shall control unless specifically stated otherwise in the PUD District.
(d)
District plans and requirements. There are two types of plans that may be used in the planned unit development process. The general purpose and use of each plan is described as follows:
(1)
Concept plan. This plan is intended to be used as the first step in the planned unit development process. It establishes the most general guidelines for the district by identifying the land use types, development standards, approximate road locations and project boundaries and illustrates the integration of these elements into a master plan for the whole district.
(2)
Detail plan. The detail plan is the final step of the planned unit development process. It contains the details of development for the property.
(e)
Concept plan requirements. Said concept plan shall include the following:
(1)
Relation to the Master Plan. A general statement setting forth how the proposed district will relate to the City's master plan and the degree to which it is or is not consistent with that plan and the proposed base zoning district.
(2)
Acreage. The total acreage within the proposed district.
(3)
Survey. An accurate legal description of the boundaries of the district.
(4)
Land uses. Proposed general land uses and the acreage for each use, including open space. For residential development, the total number of units and the number of units per acre.
(5)
General thoroughfare layout. Proposed streets, as a minimum to arterial street level. (Showing collector and local streets is optional.)
(6)
Development standards. Development standards, if different from the base zoning district, for each proposed land use, as follows:
a.
Minimum lot area.
b.
Minimum lot width and depth.
c.
Minimum front, side, and rear building setback areas.
d.
Maximum height of buildings.
e.
Maximum building coverage.
f.
Maximum floor to area ratios for nonresidential uses.
g.
Minimum parking standards for each general land use.
(7)
Existing condition. On a scaled map sufficient to determine detail, the following shall be shown for the area within the proposed district.
a.
Topographic contours of ten feet or less.
b.
Existing streets.
c.
Existing 100-year floodplain, floodway and major drainage ways.
d.
City limits and E.T.J. boundaries.
e.
Zoning districts within and adjacent to the proposed district.
f.
Land use.
g.
Utilities, including water, wastewater and electric lines.
(f)
Detail plan requirements. The application for a planned unit development district shall include a detail plan consistent with the concept plan. Said detail plan shall include the following:
(1)
Acreage. The acreage in the plan as shown by a survey, certified by a registered surveyor.
(2)
Land uses. Permitted uses, specified in detail, and the acreage for each use.
(3)
Off-site information. Adjacent or surrounding land uses, zoning, streets, drainage facilities and other existing or proposed off-site improvements, as specified by the City Manager, sufficient to demonstrate the relationship and compatibility of the district to the surrounding properties, uses, and facilities.
(4)
Traffic and transportation. The location and size of all streets, alleys, parking lots and parking spaces, loading areas or other areas to be used for vehicular traffic; the proposed access and connection to existing or proposed streets adjacent to the district; and the traffic generated by the proposed uses.
(5)
Buildings. The locations, maximum height, maximum floor area and minimum setbacks for all nonresidential buildings.
(6)
Residential development. The numbers, location, and dimensions of the lots, the minimum setbacks, the number of dwelling units, and number of units per acre (density).
(7)
Water and drainage. The location of all creeks, ponds, lakes, floodplains or other water retention or major drainage facilities and improvements.
(8)
Utilities. The location and route of all major sewer, water, or electrical lines and facilities necessary to serve the district.
(9)
Open space. The approximate location and size of greenbelt, open, common, or recreation areas, the proposed use of such areas, and whether they are to be for public or private use.
(10)
Sidewalks and bike paths. Sidewalks or other improved ways for pedestrian or bicycle use.
(11)
Landscape plan. If multifamily or nonresidential development, a landscape plan unless the project will fully comply with the landscape ordinance, as amended.
A detailed plan, with all of the information required of a concept plan, may be submitted in lieu of a concept plan.
(g)
Phasing schedule. PUD Districts larger than ten acres shall provide a phasing schedule depicting the different construction phases.
(h)
Approval of district.
(1)
City Council may, after receiving a recommendation from the Planning and Zoning Commission, approve by ordinance the creation of a district based upon a concept plan. The approved plan shall be made part of the ordinance establishing the district. Upon approval said change shall be indicated on the zoning maps of the City. A concept plan and a detail plan may be submitted simultaneously for approval.
(2)
The development standards and requirements including, but not limited to, maximum height, lot width, lot depth, floor area, lot area, setbacks and maximum off-street parking and loading requirements for uses proposed shall be established for each planned development district based upon the particular merits of the development design and layout. Such standards and requirements shall comply with or be more restrictive than the standards established in the base zoning district for the specific type uses allowed in the district, except that modifications in these regulations may be granted if it shall be found that such modifications are in the public interest, are in harmony with the purposes of this chapter and will not adversely affect nearby properties.
(i)
Approval of detail plan. If not approved simultaneously the City Council may, after receiving a recommendation from the Planning and Zoning Commission, approve the detail plan for which a concept plan has previously been approved. The approved detail plan shall be permanently filed with the City. The Planning and Zoning Commission shall approve the detail plan or an amended detail plan if it finds that:
(1)
Compliance. The plan complies with the concept plan approved for that property and the standards and conditions of the PUD district;
(2)
Compatibility. The plan provides for a compatible arrangement of buildings and land uses and would not adversely affect adjoining neighborhood or properties outside the plan; and
(3)
Circulation of vehicular traffic. The plan provides for the adequate and safe circulation of vehicular traffic.
A previously approved detail plan may only be amended by the City Council upon recommendation by the Planning and Zoning Commission except to the extent allowed under subsection (l) of this section.
(j)
Expiration of detail plan. A detail plan shall be valid for five years from the date of its approval. If a building permit has not been issued or construction begun on the detail plan within the five years, the detail plan shall automatically expire and no longer be valid. The Planning and Zoning Commission may, prior to expiration of the detail plan, for good cause shown, extend for up to 24 months the time for which the detail plan is valid.
(k)
Appeals from Planning and Zoning Commission action. If the Planning and Zoning Commission imposes conditions, or refuses to grant an extension of time for which a detail plan is valid, the applicant may appeal the decision to the City Council by filing a written request with the City within ten days of the decision.
(l)
Changes in detail plan.
(1)
Except as provided in subsection (l)(2) of this section, changes in the detail plan shall be considered the same as changes in the this chapter and shall be processed as such.
(2)
Those changes which do not alter the basic relationship of the proposed development to adjacent property and which do not alter the uses permitted or increase the density, floor area ratio or reduce the front, rear or side yards provided at the boundary of the site, as indicated on the approved detail plan, may be authorized by the City Manager.
(3)
Any applicant may appeal the decision of the City Manager to the Planning and Zoning Commission for review and decision as to whether an amendment to the Planned Unit Development District Ordinance shall be required.
(m)
Minimum development size. The total initial development of any Planned Unit Development District shall not be less than two acres for nonresidential developments and 25 acres for residential developments.
(n)
Deviation from Code standards. The City Council may approve a PUD concept plan with deviations from any provision in this Code. Such deviations shall be listed or shown as part of the ordinance that approves the concept plan.
(Ord. No. 100-02-08, § I(exh. A, § VIII), 8-12-2008)
(a)
Definitions:
As used herein the term "Density Single-Family Residential" shall refer to such uses as townhomes, condominiums, and garden homes, which are generally defined as, but not limited to, buildings containing one-family dwelling units erected as a single building or multiple buildings on a single lot. It may include horizontally-stacked dwelling units but shall in no event include apartments, which are generally defined as multi-family dwelling units at a density greater than 25 units per acre.
(b)
Use regulations:
(1)
This district allows a combination of residential, office, and commercial uses, which may or may not be in the same building, and flexibility in the planning and construction of the development in accordance with an approved site plan that allows for a broad range of mixed uses.
(2)
All uses permitted in Tables 3, 4 and 5 shall be permitted in the MXD District, except that uses requiring City Council approval ("CC" uses) shall be permitted by right pursuant to an approved MXD site plan. Additionally, Density Single-Family residential uses shall be permitted pursuant to an approved MXD site plan.
(c)
Area regulations: A MXD District shall only be permitted on tracts fronting on Texas State Highway Loop 1604 and which consist of a minimum of three acres in area.
(d)
Height, density, setbacks and other limitations: A MXD District shall not be subject to the use, height, density, commercial intensity, setbacks, parking and other regulations of the City zoning regulations, currently codified as chapter 36 of the Code of Ordinances. The height, density, commercial intensity, setbacks, parking and other requirements shall be established pursuant to an approved MXD site plan, provided, however, the following regulations shall apply:
(1)
A ten-foot minimum building setback shall be required where a non-single-family residential use within the MXD District abuts a single-family use or single-family zoning district.
(2)
A 20-foot minimum front setback shall be required for front-load residential garages and a ten-foot minimum front setback shall be required for side-load residential garages.
(3)
A ten-foot minimum building setback shall be required where any residential or nonresidential use abuts a public or private street.
(4)
Exterior fences and walls shall be permitted along the property line of any residential use.
(5)
All streets within a MXD District may be publicly accessible and may be located adjacent to the property line of any developed or undeveloped land, provided a minimum 30-foot buffer is installed when such street is adjacent to any residential rear property line. If streets are privately owned and maintained they may be gated.
(6)
Parking on public streets shall only be permitted on one side of the street and shall not be permitted between the hours of 2:00 a.m. and 5:00 a.m., except that on-street cut-out parking shall be allowed at any time pursuant to an approved MXD site plan. Public streets are defined, for the purpose of this section, as that portion of the roadway and shoulder from the property line on one side of the street to the property line on the opposite side of the street.
(7)
The height of any commercial or residential structure shall not exceed 45 feet unless authorized by an approved MXD site plan and serviceable by the Fire Department.
(8)
Where residential areas are developed with private common areas and/or privately shared open space, a mandatory homeowner's association shall be created. The homeowner's association shall be responsible for maintenance and upkeep of all private common and shared areas within the boundaries of the residential development. Board composition, dues, and other procedural aspects of the homeowner's association shall be determined by the developer of the residential area.
(9)
A minimum two-car garage shall be required for each density single-family residence and may be rear, side, or front loaded.
(e)
MXD site plan: A MXD site plan shall be approved by City Council as part of a rezoning to the MXD District and shall include:
(1)
Legal description and exhibit of the property on a scaled map sufficient to determine detail showing the area to be zoned MXD.
(2)
The general location of all land use categories. Multiple categories may be designated where a lot or building is sited to include two or more categories of uses.
(3)
The general location of all existing and proposed streets.
(4)
The proposed maximum heights, densities, commercial intensities, and parking ratios.
(5)
The following existing conditions, where applicable:
a.
Topographic contours of ten feet or less.
b.
Existing 100-year floodplain, floodway and major drainage ways.
c.
Utilities, including water, wastewater and electric lines.
(f)
Amendments to approved MXD site plan:
(1)
Classification: Amendments to a previously approved MXD site plan shall be classified as a minor or major amendment. Minor amendments may be administratively accepted. Within 20 working days after the filing of the proposed amendments, the City Manager or his/her designee shall provide a written response to the applicant indicating whether or not the revised MXD site plan has been approved as a minor amendment. All revisions to an approved MXD site plan not considered a major amendment shall be considered a minor amendment. Major amendments shall require a new application for rezoning and shall be processed in the same manner as the initial MXD site plan.
(2)
Major amendments—Applicability: Increasing the area or intensity of nonresidential uses shall be considered a major amendment.
(Ord. No. 100-06-11, § II, 5-17-2011; Ord. No. 0-2015-016, § 1, 8-27-2015; Ord. No. O-2021-008, § II, 11-22-2021)
(a)
Purpose. The purpose of this section to achieve orderly development of manufactured home parks, to promote and develop the use of land to assure the best possible community environment in accordance with the City's town plan, and to protect and promote the health, safety and general welfare. Adequate protection shall be provided against any undesirable off-site conditions or any adverse influence from adjoining streets or areas.
(b)
Manufactured home park plan.
(1)
The City Building Official shall not issue building or repair permits or certificates of occupancy for structures in manufactured home parks within the incorporated areas of the City until a plan has been approved in the manner prescribed by this section and duly filed in the office of the City Building Official. The City will withhold all public improvements and services from manufactured home parks, including wastewater, water, gas and electric service until a manufactured home park has been approved in the manner prescribed by this section. Property to be developed as a manufactured home park shall be platted prior to obtaining any building permits or utility services. Such plats shall be annotated with a statement that it is a "manufactured home community," and shall annotate the plan with the same name as the subdivision plat.
(2)
Each applicant seeking approval of a manufactured home park shall submit a manufactured home park plan to the City Building Official using the same standards as described in sections 28-41 to 28-44 of the City's Code.
(3)
Upon receipt of a manufactured home park plan, the City Building Official shall distribute copies to various City departments and agencies as the City Building Official deems appropriate for their review. The departments/agencies receiving copies of the plan shall submit their comments and recommendations for approval or disapproval in writing back to the City Building Official within 30 days of receipt of the plan.
(4)
Within 45 days of the date of submission of the manufactured home park plan, the City Building Official shall submit the plan with his recommendations and comments received from other City departments and agencies to the Planning and Zoning Commission for consideration. The Planning and Zoning Commission may approve the plan as submitted, amend and approve the plan as amended or disapprove the plan.
(5)
Property to be developed as a manufactured home park shall be platted prior to obtaining any building permits or utility services.
(6)
After favorable action by the Planning and Zoning Commission, minor changes to the plan that do not increase the density or affect platting, the general character or overall design of the manufactured home park plan may be approved by the City Building Official. Major changes shall be submitted for consideration by the Planning and Zoning Commission following the same procedure required for the original adoption of the plan. The Planning and Zoning Commission shall interpret what constitutes a major change in the plan.
(c)
The site including manufactured home stands, patios, buildings and all site improvements shall be harmoniously and efficiently organized in relation to topography, the shape of the parcel, the shape, size and position of buildings and common facilities and with full regard to use and appearance.
(d)
Stand requirements. The objective of the manufactured home stand requirements set forth in this section is to provide for the following:
(1)
Practical placement of a manufactured home on its stand by means of a car or conveyor truck.
(2)
Retention of the manufactured home on the stand in a stable condition and a satisfactory relationship to its surroundings.
(3)
Practical removal of the manufactured home from the lot by means of a car, conveyor truck, or other customary moving equipment.
(e)
Standard fire hydrants, in workable condition, shall be located within 500 feet of each manufactured home. All such fire hydrants shall be connected to not less than an eight-inch diameter water line.
(f)
Every manufactured home park shall comply with the provisions of the City's floodplain ordinance.
(g)
Manufactured homes and manufactured home parks shall only be located in B-2 zoning districts and they shall be required to comply with all of the A-2 Single-Family Residential District construction and use requirements.
(Ord. No. 100-09-12, § I, 10-22-2012)
(a)
Community Homes for Disabled Persons are allowed in A-1, A-2, A-3, A-4, A-5 PUD, CE and MXD Single-Family Dwelling Districts.
(1)
Residents of a Community Home for Disabled persons may not keep for the use of the residents of the home, either on the premises of the home or on a public right-of-way adjacent to the home, motor vehicles in numbers that exceed the number of bedrooms in the home.
(Ord. No. 0-2014-023, § I, 11-17-2014)
(a)
General. Home occupations shall be permitted in all residential zoning districts, provided the home occupation is clearly and obviously subordinate to the main use of dwelling for residential purposes and is not prohibited by subsection (c) and complies with the conditions set forth in subsection (b). Standards for controlling home occupations are set forth to minimize annoyance and inconvenience to neighboring property owners within residential areas. These standards are intended to allow reasonable and comfortable enjoyment of adjacent and nearby property by their owners and by occupants of neighboring residential dwellings, while providing opportunities for the pursuit of home-based businesses. Administrative, office and clerical functions performed at a residence by members of the family occupying the dwelling are specifically allowed and are not considered a home occupation.
(b)
Conditions.
(1)
The home occupation must be compatible with the residential use of the property and surrounding residential uses and not alter the residential character of the premises by reason of activity, color, design, materials, storage, construction, lighting, sounds, noises, vibrations, dust, odors, noxious fumes, etc., nor shall it unreasonably disturb the peace and quiet of an individual and/or the residential neighborhood, nor interfere with the area radio or television reception;
(2)
The home occupation must be confined completely within the dwelling and/or a single accessory building. The home occupation shall not occupy more than 25 percent of the gross floor area of one floor of the primary residential dwelling thereof;
(3)
The home occupation may only be carried on by members of the family occupying the dwelling, with the exception of one other person either by employment or as an independent contractor;
(4)
The home occupation must not generate pedestrian or vehicular traffic in excess of five visits a day, with not more than two client vehicles at the premises at any one time;
(5)
The home occupation shall require no exterior structural, electrical or plumbing alterations to the dwelling;
(6)
The home occupation may not involve outdoor storage or on-premises outdoor signage or advertising;
(7)
The home occupation must not generate any solid waste or sewage discharge, in volume or type, which is not normally associated with residential use in the neighborhood;
(8)
On-premises parking of commercial vehicles, as defined in section 36-1, used in conjunction with the home occupation is prohibited, except as provided in section 36-36(b)(1) and section 36-36(b)(2); and
(9)
On-premises retail sales are prohibited.
(c)
Prohibited home occupations. Examples of prohibited home occupations include the following:
(1)
Barbershops;
(2)
Beauty shops;
(3)
Commercial auto or boat sales, repair or maintenance;
(4)
Auto painting;
(5)
Sexually oriented businesses;
(6)
Restaurants;
(7)
Catering, or the preparation of food for resale except for Cottage Food Operations as that term is defined by the Tex. Health and Safety Code § 437.001; and
(8)
Animal hospitals and kennels.
(Ord. No. 0-2015-021, § III, 12-21-2015; Ord. No. O-2020-010, § II, 8-24-2020)
A portable on-demand storage structure may be utilized as a temporary structure within the City when in compliance with the standards of this subsection. Any use of such structures within the City not in compliance with this subsection shall be unlawful.
(a)
Permit. No person shall store, maintain or otherwise keep a portable on-demand storage structure on any lot or parcel of property within the City of Shavano Park without first having obtained and possessing an active permit issued by the City. Permits are valid for 60 days. Upon request from the permit holder, the City Manager may grant one 30-day extension of said permit with no permit to exceed 90 total days. Permit period shall start from the date the PODS is stored, maintained or otherwise kept on said permit holder's property.
(b)
Terms of Use. Portable on-demand storage structures may be installed in all zoning districts with the following restrictions:
(1)
No portable on-demand storage structure can be stacked on top of one another or on top of any other object;
(2)
No portable on-demand storage structures shall be used for human habitation or commercial business purposes:
(3)
Any portable on-demand storage structure shall be secure, structurally sound, stable and in good repair;
(4)
No portable on-demand storage structure shall be used to store hazardous materials; and
(5)
No portable on-demand storage structure shall be used to store refuse or debris.
(c)
Revocation. Any permit issued under this section may be revoked upon ten days' written notice to the owner, occupant or person in control of the property if such person is storing, maintaining, or otherwise keeping a portable on-demand storage structure in violation of this section.
(d)
Fees. The permit described in this subsection shall have no City fee associated with it.
(Ord. No. 0-2017-001, § V, 9-18-2017; Ord. No. O-2021-013, § I, 11-22-2021)