- LANDSCAPE REQUIREMENTS
The purpose of the landscape standards, which are to be applied within the town and its municipal influence area, is to control and regulate the planting of trees and shrubs; to encourage the protection of existing trees; to provide attractive views from roads and adjacent properties; to buffer from view visually undesirable uses; and to establish procedures for fulfilling these purposes.
(Ord. of 11-14-2005, § 156.088.1)
(a)
Application to public and private property. Except as otherwise exempted by subsection (b) of this section, the landscaping requirements of this article shall apply to all public and private land located within the town and its municipal influence area. Unless provided otherwise by this article, none of the uses authorized by this zoning ordinance shall be permitted until such landscaping requirements are approved through plan review by the town and enforced by the administrative officer.
(b)
Exempt property. None of these requirements shall apply to:
(1)
Detached single-family dwelling on an individual parcel, except as required in section 42-226(2), concerning designated entrance corridors.
(2)
All proposed residential development, except for manufactured home parks and multi-family development, shall not be required to comply with the buffer specifications as set forth in section 42-228, Buffers.
(3)
Parking lots which are not visible from a right-of-way at the same elevation or have less than 12 parking spaces.
(4)
Property developed prior to the effective date of the ordinance from which this article is derived.
(Ord. of 11-14-2005, § 156.088.2; Ord. No. (2021)1, 6-28-2021)
[The following words, terms and phrases, when used in this article, shall have the meanings ascribed to them in this section, except where the context clearly indicates a different meaning:]
Buffer means a maintained sight-obscuring fence, wall, or vegetated earth berm, or a sight-obscuring hedge or other natural plantings of comparable opacity, or a combination of the above, as further specified in section 42-228, Buffers. The purpose of such is to provide a transition between developments, in order to protect each development from possible negative effects likely to be caused by or associated with each other.
Building yards means the area adjacent to a building reserved for required plant materials.
Caliper means the diameter measurement of a tree trunk taken at six inches above ground level for trees up to and including four inches in caliper. For larger trees, measurement of caliper shall be taken at 12 inches above ground level.
Dead plant material means any trees, shrubs, or groundcover that shows an absence of living tissue, such as stems or leaves, during a full growth cycle (Spring to Spring).
Deciduous means those plants that annually lose their leaves.
Designated entrance corridor means a highway (including an existing or a future right-of-way) serving as a major entranceway into the town, as designated by the Spring Lake Area Detailed Land Use Plan [Comprehensive plan], which was adopted by the board of aldermen.
Developed properties means land that has been converted to a specific purpose by additional planned and structured improvements.
Earth berm means an earthen mound used for providing a buffer, barrier or visual shield as further defined in section 42-228, Buffers.
Evergreen means those plants that retain leaves throughout the year.
Existing trees means those trees found on a site prior to development, which may be used to meet some or all of the requirements of this chapter (see section 42-230, Existing trees).
Fence or wall means an open, opaque or solid structure intended to prevent escape or intrusion, to mark a boundary, or provide a visual shield.
(1)
Open fences or walls have openings greater than 25 percent of the total surface area, which allows clear vision and/or the passage of air.
(2)
Opaque fences or walls have openings less than 25 percent of the total surface area, which allows limited vision and/or the passage of air.
(3)
Solid fences or walls block vision and have no openings in the surface area.
Ground cover means any plant whose height under average regional growing conditions will not exceed two feet at maturity, as understood by the American Association of Nurserymen.
Large shade tree means any tree whose height under average regional growing conditions will exceed 25 feet at maturity, as understood by the American Association of Nurserymen.
Loading and service area means an area which is used for trash or garbage collection, vehicular loading and unloading, outdoor storage or repair, or for covered storage where the structure has no walls to buffer views.
Parking lot means areas, which are accessible to vehicular traffic on a regular established basis and designed for the short-term parking of serviceable motor vehicles, either as a principal use or as an accessory use.
Perimeter planting strip means a planting area located along the boundary of a parcel, parking lot or right-of-way which is reserved for landscaping purposes.
Plant material is a collective term referring to any tree, shrub, or vegetative ground cover as understood by the American Association of Nurserymen.
Planting area means the landscape area reserved for the purpose of providing growth area for required plant materials.
Right-of-way means a strip of land over which a road is built or proposed to be built.
Shrub, dwarf, means any shrub whose height under average regional growing conditions will be between one and three feet at maturity, as understood by the American Association of Nurserymen.
Shrub, large, means any shrub whose height under average regional growing conditions will be between six and 12 feet at maturity, as understood by the American Association of Nurserymen.
Shrub, medium, means any shrub whose height under average regional growing conditions will be between three and six feet at maturity, as understood by the American Association of Nurserymen.
Small ornamental tree means any tree whose height under average regional growing conditions will not exceed 25 feet at maturity, as understood by the American Association of Nurserymen.
Streetscape means any landscaped area adjacent to street rights-of-way primarily for enhancement of public travel ways and the environment.
Streetscape landscaping means the installation of plant materials within a perimeter planting strip adjacent to a street right-of-way.
Streetscape trees means any trees planted within a streetscape perimeter planting strip adjacent to a street right-of-way.
(Ord. of 11-14-2005, § 156.088.3; Ord. No. (2021)1, 6-28-2021)
The intent of this section is to establish a streetscape landscaping area adjacent to the right-of-way along town streets and designated entrance corridors. This area shall contain trees and other live vegetation to provide a more pleasing view from the travel ways; to provide a continuity of vegetation throughout the town and its municipal influence area; to reduce the amount of impervious surface and reduce stormwater runoff; improve environmental conditions; and to preserve existing trees.
(1)
Streets. For all proposed development (except single-family residential) abutting rights-of-way, the following shall be required:
a.
A perimeter planting strip adjacent to the right-of-way (planting area not to be located in the right-of-way) with a minimum width of six feet, provided each streetscape tree shall have a minimum planting area of a three-foot radius, measured from the trunk of the tree. The strip's total length shall be equal to the total length of the property line adjacent to an existing or proposed right-of-way as determined by the adopted thoroughfare plan, exclusive of access drives.
b.
Trees shall be planted, if not existing, within the planting strip according to one of the following requirements:
1.
Large shade trees shall be installed with a minimum of one tree planted for every 50 linear feet of perimeter planting strip. Each tree shall be a minimum of two inches caliper and have a minimum height of ten feet from the ground surface.
2.
Small ornamental trees shall be installed with a minimum of two trees planted for every 50 feet of perimeter planting strip. Each tree shall be a minimum of two inches caliper and have a minimum height of six feet from the ground surface.
3.
Existing trees along town streets, which meet the minimum criteria specified in section 42-230, concerning existing trees, shall be preserved.
c.
Corner parcels shall have at least one tree on each street perimeter planting strip that is 50 linear feet or greater in length.
d.
The perimeter planting strip shall also contain ground cover, grass, or mulch. The gross shall be mowed on a regular basis and the planting strip shall be kept weed and litter free by the property owner/developer. Shrubs, additional trees and/or beds of flower plants or bulbs may be included at the option of the property owner/developer.
e.
All required plant materials shall be planted according to the specifications set forth in section 42-231, concerning planting standards. Additionally, plantings shall be arranged so as not to interfere with driver vision, vehicle circulation, pedestrian circulation, or lighting.
(2)
Designated entrance corridors.
a.
Streetscape landscaping shall be required on all proposed development (including single-family residential), which abut a right-of-way along designated entrance corridors, as defined in section 42-225. Existing trees along designated entrance corridors which meet the minimum criteria specified in section 42-230, concerning existing trees, shall be preserved. The designated entrance corridors listed below were adopted by the board of aldermen as part of the Spring Lake Area Detailed Land Use Plan [Comprehensive Plan]:
Murchison Road (N.C. 87 and 210 South)
North and South Bragg Boulevard (N.C. 24 and 87)
Lillington Highway (N.C. 210 North)
Vass Road
West and East Manchester Road.
b.
Designated entrance corridor planting specifications.
1.
The streetscape landscaping standards, as set forth in subsection (1) of this section, shall be applied for all proposed development abutting rights-of-way along designated entrance corridors.
2.
In cases where a designated entrance corridor is scheduled to be widened, the property owner/developer shall plant the trees prior to the widening project, provided that the state department of transportation (NCDOT) has marked the proposed right-of-way.
(Ord. of 11-14-2005, § 156.088.4; Ord. No. (2021)1, 6-28-2021)
(a)
The intent of this section is to address any visual, environmental, and aesthetic effects of proposed parking lots as well as allowing flexibility in property development. The property owner/developer shall provide and maintain landscape planting areas within or adjacent to parking lots as long as the requirements as set forth below are met.
(b)
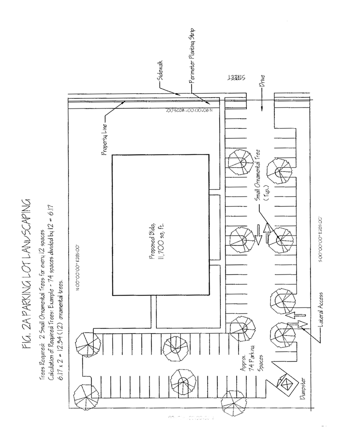
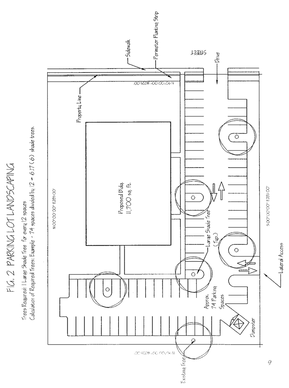
Trees shall be required on all proposed development (except single-family residential) whose parking lot is 12 spaces or greater, in accordance with the following requirements:
(1)
One large shade tree or two small ornamental trees for every 12 parking spaces.
(2)
Required trees shall be located within or adjacent to parking lots as tree islands, medians, at the end of parking bays or between rows.
(3)
Trees required within the building yard and streetscape landscaping areas cannot be credited toward the parking lot requirements.
(4)
All required plant materials shall be planted according to the specifications set forth in section 42-231, concerning planting standards. Additionally, plantings shall be arranged so as not to interfere with driver vision, vehicle circulation, pedestrian circulation, or lighting.
(5)
All parking lots shall be paved and constructed of asphalt or concrete. All pavements shall be constructed to meet the town standards and maintained according to best management practices.
(Ord. of 11-14-2005, § 156.088.5)
(a)
[Intent and applicability.] The intent of this section is to provide a transition between developments in order to protect each development from possible negative effects likely to be caused by or associated with each other. Additionally, these requirements will serve to prevent an adverse community appearance; protect the character of the area; conserve the value of the property; and provide adequate environmental conditions.
(1)
Buffers required. Buffers shall be required and properly maintained along the side and rear property lines of the following uses:
a.
Automobile wrecking yards and junkyards.
b.
Nonresidential development adjacent to residential development.
c.
Loading and service areas.
d.
Multifamily group development.
e.
Public and community stations or substations.
f.
Solid waste disposal facilities.
g.
Storage, open (commercial and industrial.
h.
Vehicle (commercial, government) repair or storage.
i.
Industrial uses adjacent to office, institutional, and commercial uses.
(2)
[Buffer types.] The required buffer shall be accomplished by one of the following:
a.
An opaque fence or wall with a minimum height of six feet. Additionally, the following plant materials shall be used in conjunction with an opaque fence or wall: one large shade tree or two small ornamental trees per 50 linear feet. Additionally medium or large evergreen shrubs shall be planted along the entire length of the fence.
b.
A solid fence or wall having a minimum height of six feet. Additionally, the following plant materials shall be used in conjunction with a solid fence or wall: one small ornamental tree, or two medium or large evergreen shrubs or four dwarf (evergreen or deciduous) shrubs per 50 linear feet.
c.
An earth berm shall be vegetated with grass, ground cover and evergreen shrubs, evergreen dwarf shrubs, or trees. The berm shall be designed so that the expected height of the shrubs at maturity combined with the height of the berm shall provide a minimum buffer height of six feet and provide full buffering. Additionally, all berms shall be built using a slope ratio of 3:1 (three feet horizontal to one foot vertical).
d.
Any combination of the above [subsections (2)a through (2)c of this section], provided that an effective buffer to a minimum height of six feet is obtained.
(3)
Dumpsters. Buffers shall be required and properly maintained around dumpsters and shall be accomplished by an opaque fence a minimum of one foot higher than the trash receptacle with a lockable fence as required by the solid waste regulations.
(4)
Industrial and manufacturing development. Buffers shall be required and properly maintained all side and rear property lines of industrial and manufacturing development abutting single-family residential development. This shall be accomplished by one of the following:
a.
An opaque fence or wall with a minimum height of six feet. Additionally the following plant materials shall be used in conjunction with an opaque fence or wall: two large shade trees or three small ornamental trees per 50 linear feet. Additionally, medium or large evergreen shrubs shall be planted along the entire length of the fence.
b.
A solid fence or wall having a minimum height of six feet. Additionally, the following plant materials shall be used in conjunction with a solid fence or wall: two small ornamental trees, or four medium or large evergreen shrubs or eight dwarf (evergreen or deciduous) shrubs per 50 linear feet.
c.
An earth berm shall be vegetated with grass, ground cover and evergreen shrubs, evergreen dwarf shrubs, or trees. The berm shall be designed so that the expected height of the shrubs at maturity combined with the height of the berm shall provide a minimum buffer height of six feet and provide full buffering. Additionally, all berms shall be built using a slope ratio of 3:1 (three feet horizontal to one foot vertical).
(5)
Manufactured home parks and recreational vehicle parks. All manufactured home parks and recreational vehicle parks shall have a minimum 15 feet wide landscape buffer around the perimeter of the park, excluding entrance drives, within which no temporary or permanent structures shall be permitted. The required landscape buffer will be properly maintained and accomplished by the following:
a.
A solid or opaque fence or wall with a minimum height of six feet.
b.
Additionally, the following plant materials shall be used in conjunction with an opaque fence or wall: one large shade tree or two small ornamental trees per 50 linear feet and a continuous row of medium or large evergreen shrubs shall be required and planted for the entire length of the fence.
(6)
Telecommunication equipment, (unmanned) towers. Buffers shall be required and properly maintained around the perimeter of all telecommunication equipment, (unmanned) towers. The required buffer shall be accomplished by the following:
a.
Fencing. The tower base shall be enclosed by a chain link fence that is at least ten feet in height and located at least ten feet from the base of the tower.
b.
Buffer area. The tower compound shall be surrounded by a buffer area that is at least 25 feet wide and shall shield the entire tract. No structures, including guy wires or anchors, may be constructed or located within the buffer area. The buffer area shall be planted with evergreen trees that will attain a minimum height of 25 feet. Additionally, the interior edge of the buffer area shall be planted with medium or large evergreen shrubs that shall have a minimum height of three feet.
(b)
Placement of buffers.
(1)
Measurement. The area to be used as a buffer shall begin from the front, side and rear property lines to be buffered, moving inwardly to the required buffer width, as specified in subsection (a) of this section.
(2)
Overlap. Buffers may overlap other yard areas and yard setbacks, but these yard areas and setbacks shall comply with the requirements of this zoning chapter. Additionally, plant materials, fences, walls and berms required for buffers shall not be planted within a designated utility easement, a right-of-way, or the sight distance triangle of intersecting streets or driveways.
(3)
Encroachment. No structure, other than a mailbox, fence, wall, sidewalk or driveway may be located within a required buffer area. No parking lot shall be allowed within a required buffer area.
(4)
Location. All plant materials used in conjunction with a solid or opaque fence or wall shall be located on the exterior side of the fence or wall.
(c)
Buffer specifications.
(1)
All required plant materials shall be planted according to the specifications set forth in section 42-231, concerning planting standards. Additionally, plantings shall be arranged so as not to interfere with driver vision, vehicle circulation, pedestrian circulation, or lighting. The required shrubs shall be pruned in a manner that allows them to maintain the required minimum height of six feet at maturity.
(2)
Fences and walls required by this section shall comply with other provisions set forth in section 42-191(3), concerning fences and walls.
(3)
Provisions for natural buffers such as rivers, stream ways, wetlands, and other natural barriers of sufficient space or visual obstructions may meet the buffer requirements as determined by the Administrative Officer.
(Ord. of 11-2005, § 156.088.6; Ord. No. (2021)1, 6-28-2021)
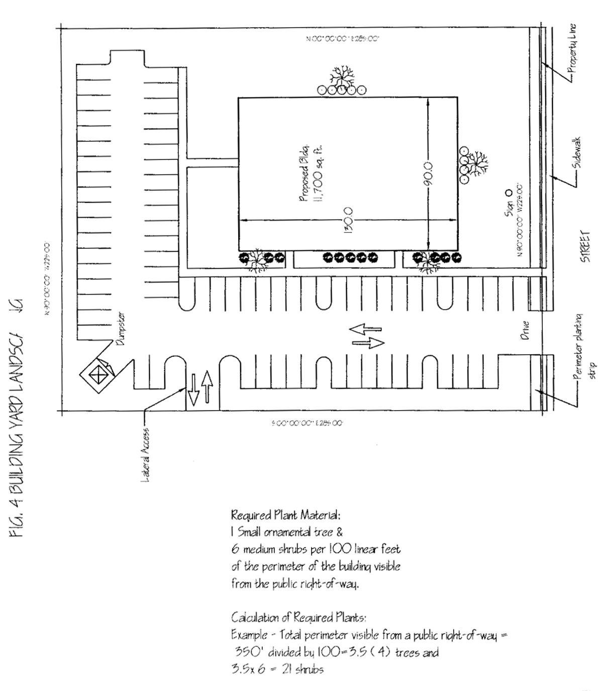
The purpose of this section is to visually and aesthetically enhance the appearance of buildings. Building yards shall be provided along the perimeter of the building visible from a public right-of-way. The required landscaping shall be accomplished by the following:
(1)
One small ornamental tree and six medium shrubs per 100 linear feet of the perimeter of the building visible from a public right-of-way.
(2)
Placement of building yard landscaping.
a.
Measurement. Minimum dimensions shall apply and be measured horizontally. Widths shall be measured from the respective building front wall. Length measurements shall be measured from the respective building corner to corner. Entrance walkways to buildings may cross building yards and the width of entrance walkways shall not be calculated as part of the length of the building yard in determining the required amount of plant materials, provided, however, that the width deducted for the entrance walkway shall not exceed the width of the entrance to the building.
b.
All required plant materials shall be planted according to the specifications set forth in section 42-231, concerning planting standards. Additionally, plantings shall be arranged so as not to interfere with driver vision, vehicle circulation, pedestrian circulation, or lighting.
(Ord. of 11-14-2005, § 156.088.7)
Preservation of trees as part of the development of the property shall be encouraged whenever feasible. Credit for existing trees shall be given toward the requirements of this chapter, provided the existing trees satisfy the requirements set forth in section 42-231, concerning planting standards.
(Ord. of 11-14-2005, § 156.088.8)
(a)
Size required.
(1)
Large shade trees shall be a minimum of two inches caliper and have a minimum height of ten feet from the ground surface.
(2)
Small ornamental trees shall be a minimum of two inches caliper and have a minimum height of six feet from the ground surface.
(3)
Large and medium shrubs shall be a minimum height of 24 inches. Dwarf shrubs shall have a minimum height of 12 inches.
(b)
Spacing required.
(1)
Streetscape trees shall be spaced no greater than 50 feet apart. All other required plant materials shall be installed according to site plan specifications.
(2)
Plant materials shall not be installed within a designated utility or other easement, including rights-of-way.
(3)
The placement of plants shall be designed so that the projected width and height of maturing plants do not obstruct sidewalks, driveways, parking lots, fire hydrants, utility easements or other public way or uses.
(4)
Any planting on any corner of two streets or driveways shall comply with section 42-191(4), concerning corner visibility.
(c)
Planting areas.
(1)
Perimeter planting strips shall be a minimum of six feet in width. Planting strips adjacent to rights-of-way shall not be paved or used for parking.
(2)
Planting areas within parking lots shall be a minimum of three feet in width.
(3)
Adequate drainage and mulching shall be provided for all planting areas.
(4)
Planting areas shall be protected from damage by vehicular traffic with barriers including, but not limited to, curbs, wheel stops, walls or fences. These measures shall be maintained for protection of the planting areas for as long as the planting areas are required by this article.
(5)
During construction, adequate protection measures shall be provided for all planting areas of existing trees to be saved under the requirements of this chapter to ensure the exclusion of construction activity and storage of materials in them. Trash and debris shall not be buried in planting areas of either existing or proposed trees required by this article.
(d)
Planting, maintenance and replacement.
(1)
All trees shall be properly guyed or staked in accordance with accepted practices in the landscape industry.
(2)
All plant materials shall conform to the requirements described in the latest edition of Standard for Nursery Stock published by the American Association of Nurserymen.
(3)
The property owner/developer shall be responsible for maintenance on the property on a continuing basis for the duration of the development. All required landscaping shall be maintained in a neat and orderly manner at all times. This shall include, but not be limited to, mowing, edging, pruning, fertilizing, watering, weeding and other practices common to landscape maintenance. Landscaped areas shall be kept free of trash, litter, weeds, and other materials not part of the landscaping.
(4)
Required landscaping shall be maintained in perpetuity in accordance with provisions set forth in this article. After initial installation it shall be the responsibility of the property owner/developer to maintain all required plantings in a healthy, vigorous and attractive state, or replace dead, diseased or deteriorated plants as specified in other sections of this article. Dead plant materials shall be replaced within 180 days.
(5)
If after three years following the installation of required buffer plant materials, the plants have not formed an effective buffer or if an effective buffer is not maintained, the administrative officer may require that another type of buffer may be added or additional plantings installed.
(e)
Existing trees. Existing trees used to satisfy all or part of the requirements of this chapter shall conform to the following provisions:
(1)
Large shade trees. Each tree shall be a minimum of two inches caliper, have a minimum height of ten feet from the ground surface, and not be within the right-of-way.
(2)
Small ornamental trees. Each tree shall be a minimum of one inch caliper, have a minimum height of six feet from the ground surface and not be within the right-of-way.
(Ord. of 11-14-2005, § 156.088.9; Ord. No. (2021)1, 6-28-2021)
(a)
Any site plan pursuant to section 42-359(b), concerning approval of plans, shall include a landscape plan (except all residential development, excluding manufactured home parks and multifamily development). A plan of the property at a scale of one inch equals 50 feet or larger shall be submitted as part of and in accordance with section 42-359(b), concerning approval of plans. The plan shall be labeled "Landscape Plan" and shall include the following:
(1)
All proposed structures, detached signs, drives, walks, parking lots, and other features pertinent to the location and planting of trees or buffers.
(2)
All existing structures, site features, and service areas to remain, which are pertinent to the location and planting of trees or buffers.
(3)
All existing and proposed utility and other easements.
(4)
All proposed trees required by this article and all existing trees proposed to be saved under the requirements of this article. Proposed trees shall be identified by genus, species and installation size. Existing trees to be saved shall be identified by genus, species, size and general condition.
(5)
The required planting areas for all trees, shrubs, and groundcover including the planting strip along rights-of-way. Critical dimensions for these areas shall be noted.
(6)
Details of permanent and temporary protection measures.
(7)
Zoning of the subject property and zoning of adjacent properties.
(8)
Total linear feet of frontage on rights-of-way.
(9)
Total number of parking spaces.
(10)
Total number of large shade trees, small ornamental trees, shrubs and ground cover to be used.
(11)
Location of required buffers including a description of materials to be used to include types, numbers, spacing and construction details of fences, walls, berms, etc.
(12)
Location and construction details of an irrigation system. Landscape plans are subject to the appeals procedure as set forth in section 42-368, Appeals.
(b)
Compliance with this chapter shall be required only to the extent that said compliance does not place the property in nonconformance with any other provisions of this chapter at time of compliance. Appeals can be made as set forth in section 42-368, Appeals.
(Ord. of 11-14-2005, § 156.088.10)
(a)
Enforcement. The provisions of this article shall be administered and enforced by the administrative officer as set forth in section 42-358, concerning the administrative officer.
(b)
Emergencies. In case of emergencies such as windstorms, ice storms, fire, or other disasters, the requirements of this article may be suspended by the administrative officer during the period of recovery therefrom, so that the requirements of this chapter would in no way hamper private or public work to restore order within the town and its municipal influence area.
(c)
Penalties and remedies. A violation of this article shall be subject to the provisions set forth in section 42-371, Penalty, and section 42-370, Remedies.
(Ord. of 11-14-2005, § 156.088.11; Ord. No. (2021)1, 6-28-2021)
- LANDSCAPE REQUIREMENTS
The purpose of the landscape standards, which are to be applied within the town and its municipal influence area, is to control and regulate the planting of trees and shrubs; to encourage the protection of existing trees; to provide attractive views from roads and adjacent properties; to buffer from view visually undesirable uses; and to establish procedures for fulfilling these purposes.
(Ord. of 11-14-2005, § 156.088.1)
(a)
Application to public and private property. Except as otherwise exempted by subsection (b) of this section, the landscaping requirements of this article shall apply to all public and private land located within the town and its municipal influence area. Unless provided otherwise by this article, none of the uses authorized by this zoning ordinance shall be permitted until such landscaping requirements are approved through plan review by the town and enforced by the administrative officer.
(b)
Exempt property. None of these requirements shall apply to:
(1)
Detached single-family dwelling on an individual parcel, except as required in section 42-226(2), concerning designated entrance corridors.
(2)
All proposed residential development, except for manufactured home parks and multi-family development, shall not be required to comply with the buffer specifications as set forth in section 42-228, Buffers.
(3)
Parking lots which are not visible from a right-of-way at the same elevation or have less than 12 parking spaces.
(4)
Property developed prior to the effective date of the ordinance from which this article is derived.
(Ord. of 11-14-2005, § 156.088.2; Ord. No. (2021)1, 6-28-2021)
[The following words, terms and phrases, when used in this article, shall have the meanings ascribed to them in this section, except where the context clearly indicates a different meaning:]
Buffer means a maintained sight-obscuring fence, wall, or vegetated earth berm, or a sight-obscuring hedge or other natural plantings of comparable opacity, or a combination of the above, as further specified in section 42-228, Buffers. The purpose of such is to provide a transition between developments, in order to protect each development from possible negative effects likely to be caused by or associated with each other.
Building yards means the area adjacent to a building reserved for required plant materials.
Caliper means the diameter measurement of a tree trunk taken at six inches above ground level for trees up to and including four inches in caliper. For larger trees, measurement of caliper shall be taken at 12 inches above ground level.
Dead plant material means any trees, shrubs, or groundcover that shows an absence of living tissue, such as stems or leaves, during a full growth cycle (Spring to Spring).
Deciduous means those plants that annually lose their leaves.
Designated entrance corridor means a highway (including an existing or a future right-of-way) serving as a major entranceway into the town, as designated by the Spring Lake Area Detailed Land Use Plan [Comprehensive plan], which was adopted by the board of aldermen.
Developed properties means land that has been converted to a specific purpose by additional planned and structured improvements.
Earth berm means an earthen mound used for providing a buffer, barrier or visual shield as further defined in section 42-228, Buffers.
Evergreen means those plants that retain leaves throughout the year.
Existing trees means those trees found on a site prior to development, which may be used to meet some or all of the requirements of this chapter (see section 42-230, Existing trees).
Fence or wall means an open, opaque or solid structure intended to prevent escape or intrusion, to mark a boundary, or provide a visual shield.
(1)
Open fences or walls have openings greater than 25 percent of the total surface area, which allows clear vision and/or the passage of air.
(2)
Opaque fences or walls have openings less than 25 percent of the total surface area, which allows limited vision and/or the passage of air.
(3)
Solid fences or walls block vision and have no openings in the surface area.
Ground cover means any plant whose height under average regional growing conditions will not exceed two feet at maturity, as understood by the American Association of Nurserymen.
Large shade tree means any tree whose height under average regional growing conditions will exceed 25 feet at maturity, as understood by the American Association of Nurserymen.
Loading and service area means an area which is used for trash or garbage collection, vehicular loading and unloading, outdoor storage or repair, or for covered storage where the structure has no walls to buffer views.
Parking lot means areas, which are accessible to vehicular traffic on a regular established basis and designed for the short-term parking of serviceable motor vehicles, either as a principal use or as an accessory use.
Perimeter planting strip means a planting area located along the boundary of a parcel, parking lot or right-of-way which is reserved for landscaping purposes.
Plant material is a collective term referring to any tree, shrub, or vegetative ground cover as understood by the American Association of Nurserymen.
Planting area means the landscape area reserved for the purpose of providing growth area for required plant materials.
Right-of-way means a strip of land over which a road is built or proposed to be built.
Shrub, dwarf, means any shrub whose height under average regional growing conditions will be between one and three feet at maturity, as understood by the American Association of Nurserymen.
Shrub, large, means any shrub whose height under average regional growing conditions will be between six and 12 feet at maturity, as understood by the American Association of Nurserymen.
Shrub, medium, means any shrub whose height under average regional growing conditions will be between three and six feet at maturity, as understood by the American Association of Nurserymen.
Small ornamental tree means any tree whose height under average regional growing conditions will not exceed 25 feet at maturity, as understood by the American Association of Nurserymen.
Streetscape means any landscaped area adjacent to street rights-of-way primarily for enhancement of public travel ways and the environment.
Streetscape landscaping means the installation of plant materials within a perimeter planting strip adjacent to a street right-of-way.
Streetscape trees means any trees planted within a streetscape perimeter planting strip adjacent to a street right-of-way.
(Ord. of 11-14-2005, § 156.088.3; Ord. No. (2021)1, 6-28-2021)
The intent of this section is to establish a streetscape landscaping area adjacent to the right-of-way along town streets and designated entrance corridors. This area shall contain trees and other live vegetation to provide a more pleasing view from the travel ways; to provide a continuity of vegetation throughout the town and its municipal influence area; to reduce the amount of impervious surface and reduce stormwater runoff; improve environmental conditions; and to preserve existing trees.
(1)
Streets. For all proposed development (except single-family residential) abutting rights-of-way, the following shall be required:
a.
A perimeter planting strip adjacent to the right-of-way (planting area not to be located in the right-of-way) with a minimum width of six feet, provided each streetscape tree shall have a minimum planting area of a three-foot radius, measured from the trunk of the tree. The strip's total length shall be equal to the total length of the property line adjacent to an existing or proposed right-of-way as determined by the adopted thoroughfare plan, exclusive of access drives.
b.
Trees shall be planted, if not existing, within the planting strip according to one of the following requirements:
1.
Large shade trees shall be installed with a minimum of one tree planted for every 50 linear feet of perimeter planting strip. Each tree shall be a minimum of two inches caliper and have a minimum height of ten feet from the ground surface.
2.
Small ornamental trees shall be installed with a minimum of two trees planted for every 50 feet of perimeter planting strip. Each tree shall be a minimum of two inches caliper and have a minimum height of six feet from the ground surface.
3.
Existing trees along town streets, which meet the minimum criteria specified in section 42-230, concerning existing trees, shall be preserved.
c.
Corner parcels shall have at least one tree on each street perimeter planting strip that is 50 linear feet or greater in length.
d.
The perimeter planting strip shall also contain ground cover, grass, or mulch. The gross shall be mowed on a regular basis and the planting strip shall be kept weed and litter free by the property owner/developer. Shrubs, additional trees and/or beds of flower plants or bulbs may be included at the option of the property owner/developer.
e.
All required plant materials shall be planted according to the specifications set forth in section 42-231, concerning planting standards. Additionally, plantings shall be arranged so as not to interfere with driver vision, vehicle circulation, pedestrian circulation, or lighting.
(2)
Designated entrance corridors.
a.
Streetscape landscaping shall be required on all proposed development (including single-family residential), which abut a right-of-way along designated entrance corridors, as defined in section 42-225. Existing trees along designated entrance corridors which meet the minimum criteria specified in section 42-230, concerning existing trees, shall be preserved. The designated entrance corridors listed below were adopted by the board of aldermen as part of the Spring Lake Area Detailed Land Use Plan [Comprehensive Plan]:
Murchison Road (N.C. 87 and 210 South)
North and South Bragg Boulevard (N.C. 24 and 87)
Lillington Highway (N.C. 210 North)
Vass Road
West and East Manchester Road.
b.
Designated entrance corridor planting specifications.
1.
The streetscape landscaping standards, as set forth in subsection (1) of this section, shall be applied for all proposed development abutting rights-of-way along designated entrance corridors.
2.
In cases where a designated entrance corridor is scheduled to be widened, the property owner/developer shall plant the trees prior to the widening project, provided that the state department of transportation (NCDOT) has marked the proposed right-of-way.
(Ord. of 11-14-2005, § 156.088.4; Ord. No. (2021)1, 6-28-2021)
(a)
The intent of this section is to address any visual, environmental, and aesthetic effects of proposed parking lots as well as allowing flexibility in property development. The property owner/developer shall provide and maintain landscape planting areas within or adjacent to parking lots as long as the requirements as set forth below are met.
(b)
Trees shall be required on all proposed development (except single-family residential) whose parking lot is 12 spaces or greater, in accordance with the following requirements:
(1)
One large shade tree or two small ornamental trees for every 12 parking spaces.
(2)
Required trees shall be located within or adjacent to parking lots as tree islands, medians, at the end of parking bays or between rows.
(3)
Trees required within the building yard and streetscape landscaping areas cannot be credited toward the parking lot requirements.
(4)
All required plant materials shall be planted according to the specifications set forth in section 42-231, concerning planting standards. Additionally, plantings shall be arranged so as not to interfere with driver vision, vehicle circulation, pedestrian circulation, or lighting.
(5)
All parking lots shall be paved and constructed of asphalt or concrete. All pavements shall be constructed to meet the town standards and maintained according to best management practices.
(Ord. of 11-14-2005, § 156.088.5)
(a)
[Intent and applicability.] The intent of this section is to provide a transition between developments in order to protect each development from possible negative effects likely to be caused by or associated with each other. Additionally, these requirements will serve to prevent an adverse community appearance; protect the character of the area; conserve the value of the property; and provide adequate environmental conditions.
(1)
Buffers required. Buffers shall be required and properly maintained along the side and rear property lines of the following uses:
a.
Automobile wrecking yards and junkyards.
b.
Nonresidential development adjacent to residential development.
c.
Loading and service areas.
d.
Multifamily group development.
e.
Public and community stations or substations.
f.
Solid waste disposal facilities.
g.
Storage, open (commercial and industrial.
h.
Vehicle (commercial, government) repair or storage.
i.
Industrial uses adjacent to office, institutional, and commercial uses.
(2)
[Buffer types.] The required buffer shall be accomplished by one of the following:
a.
An opaque fence or wall with a minimum height of six feet. Additionally, the following plant materials shall be used in conjunction with an opaque fence or wall: one large shade tree or two small ornamental trees per 50 linear feet. Additionally medium or large evergreen shrubs shall be planted along the entire length of the fence.
b.
A solid fence or wall having a minimum height of six feet. Additionally, the following plant materials shall be used in conjunction with a solid fence or wall: one small ornamental tree, or two medium or large evergreen shrubs or four dwarf (evergreen or deciduous) shrubs per 50 linear feet.
c.
An earth berm shall be vegetated with grass, ground cover and evergreen shrubs, evergreen dwarf shrubs, or trees. The berm shall be designed so that the expected height of the shrubs at maturity combined with the height of the berm shall provide a minimum buffer height of six feet and provide full buffering. Additionally, all berms shall be built using a slope ratio of 3:1 (three feet horizontal to one foot vertical).
d.
Any combination of the above [subsections (2)a through (2)c of this section], provided that an effective buffer to a minimum height of six feet is obtained.
(3)
Dumpsters. Buffers shall be required and properly maintained around dumpsters and shall be accomplished by an opaque fence a minimum of one foot higher than the trash receptacle with a lockable fence as required by the solid waste regulations.
(4)
Industrial and manufacturing development. Buffers shall be required and properly maintained all side and rear property lines of industrial and manufacturing development abutting single-family residential development. This shall be accomplished by one of the following:
a.
An opaque fence or wall with a minimum height of six feet. Additionally the following plant materials shall be used in conjunction with an opaque fence or wall: two large shade trees or three small ornamental trees per 50 linear feet. Additionally, medium or large evergreen shrubs shall be planted along the entire length of the fence.
b.
A solid fence or wall having a minimum height of six feet. Additionally, the following plant materials shall be used in conjunction with a solid fence or wall: two small ornamental trees, or four medium or large evergreen shrubs or eight dwarf (evergreen or deciduous) shrubs per 50 linear feet.
c.
An earth berm shall be vegetated with grass, ground cover and evergreen shrubs, evergreen dwarf shrubs, or trees. The berm shall be designed so that the expected height of the shrubs at maturity combined with the height of the berm shall provide a minimum buffer height of six feet and provide full buffering. Additionally, all berms shall be built using a slope ratio of 3:1 (three feet horizontal to one foot vertical).
(5)
Manufactured home parks and recreational vehicle parks. All manufactured home parks and recreational vehicle parks shall have a minimum 15 feet wide landscape buffer around the perimeter of the park, excluding entrance drives, within which no temporary or permanent structures shall be permitted. The required landscape buffer will be properly maintained and accomplished by the following:
a.
A solid or opaque fence or wall with a minimum height of six feet.
b.
Additionally, the following plant materials shall be used in conjunction with an opaque fence or wall: one large shade tree or two small ornamental trees per 50 linear feet and a continuous row of medium or large evergreen shrubs shall be required and planted for the entire length of the fence.
(6)
Telecommunication equipment, (unmanned) towers. Buffers shall be required and properly maintained around the perimeter of all telecommunication equipment, (unmanned) towers. The required buffer shall be accomplished by the following:
a.
Fencing. The tower base shall be enclosed by a chain link fence that is at least ten feet in height and located at least ten feet from the base of the tower.
b.
Buffer area. The tower compound shall be surrounded by a buffer area that is at least 25 feet wide and shall shield the entire tract. No structures, including guy wires or anchors, may be constructed or located within the buffer area. The buffer area shall be planted with evergreen trees that will attain a minimum height of 25 feet. Additionally, the interior edge of the buffer area shall be planted with medium or large evergreen shrubs that shall have a minimum height of three feet.
(b)
Placement of buffers.
(1)
Measurement. The area to be used as a buffer shall begin from the front, side and rear property lines to be buffered, moving inwardly to the required buffer width, as specified in subsection (a) of this section.
(2)
Overlap. Buffers may overlap other yard areas and yard setbacks, but these yard areas and setbacks shall comply with the requirements of this zoning chapter. Additionally, plant materials, fences, walls and berms required for buffers shall not be planted within a designated utility easement, a right-of-way, or the sight distance triangle of intersecting streets or driveways.
(3)
Encroachment. No structure, other than a mailbox, fence, wall, sidewalk or driveway may be located within a required buffer area. No parking lot shall be allowed within a required buffer area.
(4)
Location. All plant materials used in conjunction with a solid or opaque fence or wall shall be located on the exterior side of the fence or wall.
(c)
Buffer specifications.
(1)
All required plant materials shall be planted according to the specifications set forth in section 42-231, concerning planting standards. Additionally, plantings shall be arranged so as not to interfere with driver vision, vehicle circulation, pedestrian circulation, or lighting. The required shrubs shall be pruned in a manner that allows them to maintain the required minimum height of six feet at maturity.
(2)
Fences and walls required by this section shall comply with other provisions set forth in section 42-191(3), concerning fences and walls.
(3)
Provisions for natural buffers such as rivers, stream ways, wetlands, and other natural barriers of sufficient space or visual obstructions may meet the buffer requirements as determined by the Administrative Officer.
(Ord. of 11-2005, § 156.088.6; Ord. No. (2021)1, 6-28-2021)
The purpose of this section is to visually and aesthetically enhance the appearance of buildings. Building yards shall be provided along the perimeter of the building visible from a public right-of-way. The required landscaping shall be accomplished by the following:
(1)
One small ornamental tree and six medium shrubs per 100 linear feet of the perimeter of the building visible from a public right-of-way.
(2)
Placement of building yard landscaping.
a.
Measurement. Minimum dimensions shall apply and be measured horizontally. Widths shall be measured from the respective building front wall. Length measurements shall be measured from the respective building corner to corner. Entrance walkways to buildings may cross building yards and the width of entrance walkways shall not be calculated as part of the length of the building yard in determining the required amount of plant materials, provided, however, that the width deducted for the entrance walkway shall not exceed the width of the entrance to the building.
b.
All required plant materials shall be planted according to the specifications set forth in section 42-231, concerning planting standards. Additionally, plantings shall be arranged so as not to interfere with driver vision, vehicle circulation, pedestrian circulation, or lighting.
(Ord. of 11-14-2005, § 156.088.7)
Preservation of trees as part of the development of the property shall be encouraged whenever feasible. Credit for existing trees shall be given toward the requirements of this chapter, provided the existing trees satisfy the requirements set forth in section 42-231, concerning planting standards.
(Ord. of 11-14-2005, § 156.088.8)
(a)
Size required.
(1)
Large shade trees shall be a minimum of two inches caliper and have a minimum height of ten feet from the ground surface.
(2)
Small ornamental trees shall be a minimum of two inches caliper and have a minimum height of six feet from the ground surface.
(3)
Large and medium shrubs shall be a minimum height of 24 inches. Dwarf shrubs shall have a minimum height of 12 inches.
(b)
Spacing required.
(1)
Streetscape trees shall be spaced no greater than 50 feet apart. All other required plant materials shall be installed according to site plan specifications.
(2)
Plant materials shall not be installed within a designated utility or other easement, including rights-of-way.
(3)
The placement of plants shall be designed so that the projected width and height of maturing plants do not obstruct sidewalks, driveways, parking lots, fire hydrants, utility easements or other public way or uses.
(4)
Any planting on any corner of two streets or driveways shall comply with section 42-191(4), concerning corner visibility.
(c)
Planting areas.
(1)
Perimeter planting strips shall be a minimum of six feet in width. Planting strips adjacent to rights-of-way shall not be paved or used for parking.
(2)
Planting areas within parking lots shall be a minimum of three feet in width.
(3)
Adequate drainage and mulching shall be provided for all planting areas.
(4)
Planting areas shall be protected from damage by vehicular traffic with barriers including, but not limited to, curbs, wheel stops, walls or fences. These measures shall be maintained for protection of the planting areas for as long as the planting areas are required by this article.
(5)
During construction, adequate protection measures shall be provided for all planting areas of existing trees to be saved under the requirements of this chapter to ensure the exclusion of construction activity and storage of materials in them. Trash and debris shall not be buried in planting areas of either existing or proposed trees required by this article.
(d)
Planting, maintenance and replacement.
(1)
All trees shall be properly guyed or staked in accordance with accepted practices in the landscape industry.
(2)
All plant materials shall conform to the requirements described in the latest edition of Standard for Nursery Stock published by the American Association of Nurserymen.
(3)
The property owner/developer shall be responsible for maintenance on the property on a continuing basis for the duration of the development. All required landscaping shall be maintained in a neat and orderly manner at all times. This shall include, but not be limited to, mowing, edging, pruning, fertilizing, watering, weeding and other practices common to landscape maintenance. Landscaped areas shall be kept free of trash, litter, weeds, and other materials not part of the landscaping.
(4)
Required landscaping shall be maintained in perpetuity in accordance with provisions set forth in this article. After initial installation it shall be the responsibility of the property owner/developer to maintain all required plantings in a healthy, vigorous and attractive state, or replace dead, diseased or deteriorated plants as specified in other sections of this article. Dead plant materials shall be replaced within 180 days.
(5)
If after three years following the installation of required buffer plant materials, the plants have not formed an effective buffer or if an effective buffer is not maintained, the administrative officer may require that another type of buffer may be added or additional plantings installed.
(e)
Existing trees. Existing trees used to satisfy all or part of the requirements of this chapter shall conform to the following provisions:
(1)
Large shade trees. Each tree shall be a minimum of two inches caliper, have a minimum height of ten feet from the ground surface, and not be within the right-of-way.
(2)
Small ornamental trees. Each tree shall be a minimum of one inch caliper, have a minimum height of six feet from the ground surface and not be within the right-of-way.
(Ord. of 11-14-2005, § 156.088.9; Ord. No. (2021)1, 6-28-2021)
(a)
Any site plan pursuant to section 42-359(b), concerning approval of plans, shall include a landscape plan (except all residential development, excluding manufactured home parks and multifamily development). A plan of the property at a scale of one inch equals 50 feet or larger shall be submitted as part of and in accordance with section 42-359(b), concerning approval of plans. The plan shall be labeled "Landscape Plan" and shall include the following:
(1)
All proposed structures, detached signs, drives, walks, parking lots, and other features pertinent to the location and planting of trees or buffers.
(2)
All existing structures, site features, and service areas to remain, which are pertinent to the location and planting of trees or buffers.
(3)
All existing and proposed utility and other easements.
(4)
All proposed trees required by this article and all existing trees proposed to be saved under the requirements of this article. Proposed trees shall be identified by genus, species and installation size. Existing trees to be saved shall be identified by genus, species, size and general condition.
(5)
The required planting areas for all trees, shrubs, and groundcover including the planting strip along rights-of-way. Critical dimensions for these areas shall be noted.
(6)
Details of permanent and temporary protection measures.
(7)
Zoning of the subject property and zoning of adjacent properties.
(8)
Total linear feet of frontage on rights-of-way.
(9)
Total number of parking spaces.
(10)
Total number of large shade trees, small ornamental trees, shrubs and ground cover to be used.
(11)
Location of required buffers including a description of materials to be used to include types, numbers, spacing and construction details of fences, walls, berms, etc.
(12)
Location and construction details of an irrigation system. Landscape plans are subject to the appeals procedure as set forth in section 42-368, Appeals.
(b)
Compliance with this chapter shall be required only to the extent that said compliance does not place the property in nonconformance with any other provisions of this chapter at time of compliance. Appeals can be made as set forth in section 42-368, Appeals.
(Ord. of 11-14-2005, § 156.088.10)
(a)
Enforcement. The provisions of this article shall be administered and enforced by the administrative officer as set forth in section 42-358, concerning the administrative officer.
(b)
Emergencies. In case of emergencies such as windstorms, ice storms, fire, or other disasters, the requirements of this article may be suspended by the administrative officer during the period of recovery therefrom, so that the requirements of this chapter would in no way hamper private or public work to restore order within the town and its municipal influence area.
(c)
Penalties and remedies. A violation of this article shall be subject to the provisions set forth in section 42-371, Penalty, and section 42-370, Remedies.
(Ord. of 11-14-2005, § 156.088.11; Ord. No. (2021)1, 6-28-2021)