I USE AND STRUCTURE REGULATIONS
In the construction of this ordinance, the rules and definitions contained in this section shall be observed and applied, except when the context clearly indicates otherwise.
1300 Hotel, Motel, Or Other Accommodation Services: This category is comprised of establishments which serve lodging accommodations for travelers and must be staffed with twenty-four-hour clerk service, maid and janitor services. They may offer a wide range of services, from overnight sleeping space to full-service hotel suites. They may offer these services in conjunction with other activities, such as entertainment or recreation.
1310 Bed And Breakfast Inn: This is a 1300 use category which is comprised of establishments which operate primarily in private homes and small buildings.
1320 Rooming And Boarding/Single Room Occupancy: This is a 1300 use category which is comprised of accommodation services such as rooming and boarding and single room occupancy establishments, rooming and boarding establishments serve a specific group or membership, such as a dormitory, fraternity or sorority house, or workers' camp, they provide accommodations and may offer housekeeping, meals, and laundry services. Single Room Occupancy are establishments where a room is provided, for compensation pursuant to previous arrangement, as sleeping and living quarters, but without cooking facilities and with or without an individual bathroom. Including but not limited to Lodging house; Rooming house; Dormitory
1330 Hotel, Minor: This is a 1300 use category which is comprised of establishments with fewer than fifty (50) guest rooms established prior to December 01, 1992.
1340 Motel: This is a 1300 use category which is comprised of establishments with no common corridor to access guest rooms, the rooms are individually accessible from the outside. Including but not limited to Tourist Courts; Motor Lodges; and Motels.
1350 Hotel, Limited Service: This is a 1300 use category which is comprised of establishments that have more than fifty (50) guest rooms, and has meeting space/banquet facilities for less than 100 persons, no food service and none or one of the following amenities: swimming pool, exercise facility, gift shop or hotel restaurant within the physical confines of the hotel.
1360 Hotel, Select Service: This is a 1300 use category which is comprised of establishments that have more than fifty (50) guest rooms, and has meeting space/banquet facilities for between 100 and 200 persons, limited food service (i.e. continental breakfast) and two or more of the following amenities: swimming pool, exercise facility, gift shop or hotel restaurant within the physical confines of the hotel. In addition to these required amenities others may also be provided for guests including but not limited to: spa facilities, dry cleaning service, recreational activities, or entertainment.
1370 Hotel, Full Service: This is a 1300 use category which is comprised of establishments that have more than one hundred and twenty (120) guest rooms, and has meeting space/banquet facilities for between 200 and 1,000 persons, a hotel restaurant within the physical confines of the hotel and room service that is accessory to the restaurant use and all three of the following amenities: swimming pool, exercise facility, and gift shop. In addition to these required amenities others may also be provided for guests including but not limited to: spa facilities, dry cleaning service, recreational activities, or entertainment.
1380 Hotel, Convention: This is a 1300 use category which is comprised of establishments that have at least 200,000 square feet of floor area of which a minimum of 50% must be occupied by meeting space/banquet facilities, and has meeting space/banquet facilities for at least 1,000 persons, a minimum of one hotel restaurant within the physical confines of the hotel and room service that is accessory to the restaurant use and all three of the following amenities: swimming pool, exercise facility, and gift shop. In addition to these required amenities others may also be provided for guests including but not limited to: spa facilities, dry cleaning service, recreational activities, or entertainment.
1510 Community Residence, Minor: This 1500 use category is comprised of establishments where a dwelling structure is occupied by a group of four (4) to six (6) unrelated persons with disabilities with onsite support staff provided by a sponsoring agency.
1520 Community Residence, Major: This 1500 use category is comprised of establishments where a dwelling structure is occupied by a group of seven (7) or more unrelated persons with disabilities with onsite support staff provided by a sponsoring agency.
1530 Community Residence, Transitional: This 1500 use category is comprised of establishments where a dwelling structure is occupied by a group of unrelated persons who have been paroled for criminal offenses, or a dwelling structure which serves as an alternative to incarceration for persons with criminal offenses. Including but not limited to, work release center, halfway house (correctional), transitional living quarters or comparable facilities.
2115 Cannabis Dispensing Facility: A facility operated by an organization or business that is licensed by the Department of Financial and Professional Regulation to acquire cannabis from a registered cannabis cultivation facility for the purpose of dispensing cannabis, cannabis infused products, cannabis seeds, paraphernalia, or related supplies and educational materials to purchasers or registered qualifying patients and caregivers.
2160 Pawnshop: A Business establishment that provides loans on the security of pledged goods left in pawn, or in the business of purchasing tangible personal property to be left in pawn on the condition that it may be redeemed or repurchased by the seller for a fixed price within a fixed period of time
2195 Automated/Unstaffed Business Devices: This 2100 use category consists of any automated device which dispenses, sells, vends, or collects goods or services with no attendant required. Including but not limited to vending machines, “atm” banking machines, newspaper stands, and other coin/card operated devices.
2195.1 Donation Collection Bin: This 2100 use category consists of containers intended to accept and store donated items for collection.
2198 Garage Sale: This 2100 use category consists of general sales conducted from a residential property which is open to the public for the purpose of disposing personal property.
2199 Farmers Market: This 2100 use category consists of a public market at which farmers and often other vendors sell produce directly to the consumer.
2220 Alternative Financial Services Businesses: This category is the use of a site for a check cashing business, payday advance or loan business, money transfer business, motor vehicle title loan business, cash-for-gold establishments or a credit access business as defined in this section. This use excludes: (1) a state or federally chartered bank, savings and loan association or credit union, or a pawnshop; and (2) a convenience store, supermarket, or other retail establishment where consumer retail sales constitute at least 75% of the total gross revenue generated on site.
2520 Drive–In Restaurant: An eating establishment whose principal business is the sale of food and beverages served directly to the customer in a motor vehicle by an employee outside the confines of the building.
2831 Gasoline Station: A place where gasoline or any other automotive engine fuel stored only in underground tanks, kerosene, or lubricating oil or grease for the operation of motor vehicles or boats are offered for sale directly to the public on the premises. Minor automotive repairs, accessories and servicing is permitted. Major automotive or boat repairs; tire recapping; and the washing of motor vehicles where no production-line methods, mechanized devices, or combination thereof is employed are not permitted. When the dispensing, sale or offering for sale of motor fuels or oil is incidental to the conduct of a public garage, the premises shall be classified as a public garage.
2832 Car Wash, Multiple Bay: A structure, or portion thereof, containing two (2) or more bays for the washing of motor vehicles by manual means, by self-serve means, by mechanized means, by means of a production line, or any combination thereof; or which has an operating capacity of two (2) or more vehicles at any one (1) time.
2833 Car Wash, Single Bay: A structure, or portion thereof, containing one (1) bay where motor vehicles are washed by means of a fully automated mechanized process, and which has an operating capacity of only one (1) vehicle at any one (1) time.
2834 Vehicle Repair, Minor: Incidental repairs, replacement of parts, and motor service to motor vehicles, but not including any operation specified under "Vehicle repair, major" or the servicing of small automotive engines.
2835 Hand Wash, Detail Shop: A building where motor vehicles are washed, waxed, polished or cleaned by hand; but not including any operation specified under "Car Wash, multiple or single bay".
2836 Vehicle Repair, Major: Engine rebuilding or major reconditioning of worn or damaged motor vehicles, trailers, boats, industrial equipment, automotive or industrial engineering; collision service, including body, frame or fender straightening or repair; and overall painting of vehicles but not including the recapping of tires, or the processing of other rubber or synthetic materials that may be used in the repair of the vehicles only.
2841 Truck Stop Establishments: A place where gasoline or any other automotive engine fuel stored only in underground tanks, kerosene, or lubricating oil or grease for the operation of motor vehicles or boats are offered for sale directly to the public on the premises. These establishments have one or more diesel fuel stations with bays that are designed to accommodate semi-trucks or other commercial vehicles. Minor automotive repairs, accessories and servicing is permitted. Major automotive or boat repairs; tire recapping; and the washing of motor vehicles where no production-line methods, mechanized devices, or combination thereof is employed are not permitted. When the dispensing, sale or offering for sale of motor fuels or oil is incidental to the conduct of a public garage, the premises shall be classified as a public garage.
3110 Food, Textiles, And Related Products: This is a 3100 use category which is comprised of establishments which produce food products for intermediate or final consumption in a process that primarily uses raw materials from agricultural products. Including but not limited to establishments that produce tobacco, textiles, and leather products, beverage bottling and distributing; canning and preserving; food manufacture, packaging and processing; ice cream and ice manufacture.
3112 Cannabis Processing Facility: A facility operated by an organization or business that is licensed by the Illinois Department of Agriculture to either extract constituent chemicals or compounds to produce cannabis concentrate or incorporate cannabis or cannabis concentrate into a product formulation to produce a cannabis product.
3113 Cannabis Infuser Facility: A facility operated by an organization or business that is licensed by the Illinois Department of Agriculture to directly incorporate cannabis or cannabis concentrate into a product formulation to produce a cannabis-infused product.
3150 Recycling Centers: This 3100 use category is comprised of establishments which are entirely within a completely enclosed building where scrap metal, paper, rags or other recyclable materials are bought, sold, exchanged, stored, baled, packed, disassembled or handled, but excluding recycling yards/junk shops.
3300 Warehouse, Distribution & Storage Services: This 3300 Use Category is comprised of establishments which primarily provide storage for general merchandise, refrigerated goods, other warehouse products or computer systems and associated components. Uses in this category provide the facilities to store goods but do not sell the goods they handle. They may also provide a range of services related to the distribution of goods, such as labeling, breaking bulk, inventory control and management, light assembly, order entry and fulfillment, packaging, pick and pack, price marking and ticketing, transportation arrangement or processing and distribution of large amounts of data. This includes but is not limited to the following: Cartage (local), express hauling, Electronic Storage Data Centers, cryptocurrency facilities, and warehousing and distribution facilities, but excluding motor freight terminals. Motor Freight Terminals are categorized under 3310 Vehicle Terminals and Storage.
3410 Recycling Yards/Junk Shops: This 3400 use category is comprised of establishments which consist of an open area where scrap metal, paper, rags or other recyclable materials are bought, sold, exchanged, stored, baled, packed, disassembled or handled, including auto and building wrecking yards, but excluding recycling centers. This use shall be wholly enclosed by a solid wall or fence, not less than 7 feet in height, and no material shall be piled or stacked to a height of fifteen (15) feet above the ground level.
4142 Cannabis Transporting Facility: An facility operated by an organization or business that is licensed by the Illinois Department of Agriculture to transport cannabis on behalf of a cannabis business establishments or a community college licensed under the Community College Cannabis Vocational Training Pilot Program.
4210 Above Ground Communication And Electric Utility Facility: An above ground structure used by a wire utility, such as telephone, cable, cell towers, or electric service, to provide services to the public where the structure is sized greater than 4’ x 3’ x 2’
4310 Alternative Energy System: For the purposes of Section 49-104.4(i), alternative energy system refers to a system that converts sunlight or wind into usable energy.
5200 Special Purpose Recreational Institutions: This 5000 use category is comprised of establishments which, as a primary use, provide facilities for amusement, entertainment or recreational activities. Including but not limited to the following: arcade, auditorium, stadium, arena, armory, gymnasium, or other similar places for public events; health club, bowling alley, dance hall, skating rink, archery range, golf practice range, miniature golf course, swim club, tennis, handball and racquetball club and similar activities.
5210 Community Center: This 5200 use category is comprised of establishments which as a primary use provide multi-use facilities for public events, recreation and community services. Establishments in this category are public locations where members of a community may gather for group activities, social support, public information and other purposes. They may sometimes be open for the whole community or for a specialized group within the greater community.
5230 Golf Courses, Public Or Private: This 5200 use category is comprised of establishments which, as a primary or accessory use, allow for playing of golf on a tract of land laid out for at least nine holes and improved with trees, greens fairways, and hazards and that may include a clubhouse and shelter.
5270 Juice Bars, Dry Cabarets, Teenage Cabarets, And Other Non-Alcoholic Bars: This 5200 use category is comprised of establishments which are designed, used or intended to be used primarily for participation by the public assembling for entertainment or amusement purposes, including but not limited to music, music videos and dancing but excludes any establishment which serves alcoholic beverages.
5400 Natural And Other Recreational Parks: This 5000 use category is comprised of establishments, the primary use of which is recreational and open space without special economic functions. Including but not limited to the following: Community parks; Communitywide special parks; Conservation/protection parks; Linear parks; Neighborhood parks; Public and private parks or playgrounds.
5410 Amusement Or Theme Park Or Fair: This 5400 use category is comprised of indoor or outdoor establishments, which may include buildings, where there are various devices for entertainment, including but not limited to rides, games, sale of items, shows and entertainment, food services, and souvenir sales. This use excludes carnivals and circuses which comply with the requirements in Chapters 8 and 9 of the Aurora Municipal Code.
6310 Day Care: Any child care facility which regularly provides day care for less than twenty-four-hour days (1) for more than eight (8) children in a family home, or (2) more than three (3) children in a facility other than a family home, which complies with all the licensing requirements for the State of Illinois, Department of Children and Family Services (refer to Illinois Revised Statutes). The child care facilities provide supplemental parental care and supervision and/or educational instruction.
6400 Religious Institutions: Establishments that operate religious organizations, such as churches, temples, monasteries, synagogues, etc.
7110 Cannabis Cultivation Facility: A facility operated by an organization or business that is licensed by the Department of Agriculture to cultivate, process, transport and perform necessary activities to provide cannabis and cannabis infused products to cannabis business establishments.
7115 Cannabis Craft Grower Facility: A facility operated by an organization or business that is licensed by the Illinois Department of Agriculture to cultivate, dry, cure and package cannabis and perform other necessary activities to make cannabis available for sale at a dispensing facilities or use at a processing organization.
7200 Community Gardening: This 7000 use category is comprised of establishments where the primary us of the land is for gardening and other horticultural uses where no building is involved and when no sale of product is conducted on the premises. This use typical includes rented or leased small plots of land where produce is grown for individual consumption.
Accessory Structures And Uses: Is one which: is subordinate to and serves a principal building or principal use; and is subordinate in area, extent, or purpose to the principal building or principal use served; and contributes to the comfort, convenience, or necessity of occupants of the principal building or principal use served; and is located on the same zoning lot as the principal building or principal use served with the single exception of such accessory off-street parking facilities as are permitted to locate elsewhere than on the same zoning lot with the building or use served.

Acre: A measure of land containing 43,560 square feet.
Adult Business Uses: Any use described as an adult use in the License, Permits and Miscellaneous Business Regulations Chapter of the Aurora Municipal Code of Ordinances.
Alley: A public way, not more than thirty (30) feet wide, which affords only a secondary means of access to abutting property.
Apartment: A room or suite of rooms in a multiple-family structure, which is arranged, designed, used or intended to be used as a single housekeeping unit. Complete kitchen facilities, permanently installed, must always be included for each apartment.
Automobile Intensive Uses: A use that caters to automobile owners by offering services for automobiles or other non-automobile related services, which can be accessed without the owner leaving the automobile. These uses include but are not limited to Automotive Service Station, Automobile Laundry, Drive-Through Restaurant, and Drive-In Establishment.
Automobile Service Bay: Any area within a building in which a business or service involving the maintenance, servicing, repairing, painting, washing, or detailing, as defined herein, of vehicles is conducted or rendered.
Automobile Uses: Any uses engaged in furnishing to the general public vehicular maintenance, service, repair, painting, washing, detailing, leasing or parking, excluding automotive service stations as defined herein.
Automobile Wrecking Yard: Any place where two (2) or more motor vehicles not in running condition, or parts thereof, are stored in the open and are not being restored to operation, or any land, building or structure used for wrecking or storing of such motor vehicles or parts thereof, and including any used farm vehicles or farm machinery, or parts thereof, stored in the open and not being restored to operating condition; and including the commercial salvaging of any other goods, articles or merchandise.
Awning: A roof like cover, temporary in nature, which projects from the wall of a building and overhangs the public way.
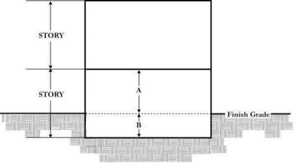
Basement: That portion of a building which is partly or wholly below grade. A basement shall not be counted as a story for purposes of height measurement when the vertical distance from the average finish grade to the floor is greater than the vertical distance from the average finish grade to the ceiling.
If the average of "A" is less than or equal to 1/2 of "B", this is not counted as a story for height measurements.

If the average of "A" is greater than 1/2 of "B", this is counted as a story for height measurements.

Block: A tract of land bounded by streets or, in lieu of a street or streets, by public parks, cemeteries, railroad rights-of-way, bulkhead lines or shorelines of waterways or a corporate boundary line of the city.
Boardinghouse: A building other than a hotel or restaurant where meals are provided for compensation to four (4) or more persons, but not more than twelve (12), who are not members of the keeper's family.
Boat: Any vessel used for water travel. A boat mounted on a trailer shall be considered one vehicle.
Boathouse: A building designed to serve as a private or public boathouse for the storage of boats and for the servicing of boats, boat engines and equipment.
Buildable Area: The space remaining on a zoning lot after the minimum setback and open space requirements of this ordinance have been compiled with.

Building: Any structure with substantial walls and roof securely affixed to the land and entirely separated on all sides from any other structure by space or by walls in which there are no communicating doors, windows or openings; and which is designed or intended for the shelter, enclosure or protection of persons, animals or chattels. Any structure with interior areas not normally accessible for human use, such as gasholders, oil tanks, water tanks, grain elevators, coalbunkers, oil cracking towers and other similar structures are not considered as buildings.

Building, Completely Enclosed: A completely enclosed building is a building separated on all sides from the adjacent open space, or from other buildings or other structures, by a permanent roof and by exterior walls or party walls pierced only by windows and normal entrance or exit doors.
Building Height: The vertical distance measured from the sidewalk level or its equivalent established grade opposite the middle of the front of the building to the highest point of the roof in the case of a flat roof; to the deck line of a mansard roof; and to the mean height level between eaves and ridge of a gable, hip or gambrel roof; provided, that where buildings are set back from the street line, the height of the building may be measured from the average elevation of the finished lot grade at the front of the building.
Building Line: See setback line, building
Building Mounted System: An alternative energy system that is mounted on either the principal or accessory structure or both.
Building, Nonconforming: Any building which does not conform to the regulations of this ordinance prescribing the maximum floor area ratio, required yards, coverage, height and setbacks, minimum required spacing between buildings on a single lot, and minimum required usable open space for the district in which such building is located.
Building, Principal: A building in which is conducted the main use of the zoning lot on which it is situated.

Bulk: The term used to describe the size and mutual relationships of buildings and other structures, as to size; height; coverage; shape; location of exterior walls in relation to lot lines, to the centerline of streets, to other walls of the same building, and to other buildings or structures; and to all open spaces relating to the building or structure.
Bus Lot: Any lot or land area for the storage or layover of passenger buses or motor coaches.
Business: An occupation, employment or enterprise that occupies time, attention, labor, and materials, or wherein merchandise is exhibited or sold, or where services are offered.
Business Area: A zoning lot or portion of a zoning lot designed or used for purposes other than residential.
Business Establishment: A structure, or lot, used in whole or in part as a place of business, the ownership or management of which is separate and distinct from the ownership or management of any other place of business located on the same or other lot.
Caliper: The diameter of a tree trunk. For purposes of the Aurora Zoning Ordinance, the caliper of a tree drunk is measured 12” from ground level or grade.
Carport: A structure intended for shelter of an automotive vehicle on residential property, which is formed by a roof projecting from the wall of the principal structure and has at least one side permanently open to the weather, and which, for the purposes of the Zoning Ordinance, is an integral part of an architectural design for an existing or proposed principal building.
Carryout Or Delivery Food Establishments: A retail food establishment whose principal business is the sale of food or beverage primarily for consumption off the premises. The establishment may deliver food to the customer or the customer may pick the food up by using a drive-up window or by entering the establishment. Limited seating (up to 8 seating spaces) may be provided for customers to use while waiting for their orders. A carry out or delivery establishment that has more than limited seating shall be deemed a dine-in food and beverage establishment for zoning purposes.
Cartage, Local: Pickup and delivery of parcels, packages and freight by motor truck within and not exceeding twenty-five (25) miles of the city.
Cash-For-Gold Store: A business establishment whose primary business activity is the purchase of gold or other precious metals. A cash for gold store as defined herein does not include the purchase of gold or other precious metals when located in a facility whose principal business activity is the retail sales of jewelry.
Category Line: The line parallel to a major street and which serves as a boundary between different residential categories on a single parcel.
Category Yard: An open space, unoccupied and unobstructed from its lowest level upward, and which extends along a category line to a depth or width specified in the yard regulations of the residential (housing) standards of the B-B district.
Cellar: A "cellar" is a story having more than one-half of its height below the curb level or below the highest level of the adjoining ground. A cellar shall not be counted as a story for the purpose of height measurements.
Clinic, Medical Or Dental: A building containing an individual practitioner or an association or group of licensed physicians; surgeons, dentists, clinical psychologists, or similar professional health care practitioners, including assistants. The clinic may include apothecary, dental and medical laboratories, and/or X-ray facilities, but shall not include in-patient care or operating rooms for major surgery.
Clinic Or Medical Center: A "medical center" or "medical clinic" is an establishment where three (3) or more licensed physicians, surgeons or dentists engage in the practice of medicine or dentistry, operating on a group or individual basis with pooled facilities, which need not, but may, include coordinated laboratory, X-ray and allied departments, and the diagnosis and treatment of humans, a drug prescription counter (not a drugstore) for the dispensing of drugs and pharmaceutical products, orthopedic or optical devices to the patients of said physicians, surgeons and dentists; but not including any exterior display or advertising sign.
Club Or Lodge, Private: A structure or part thereof used by a not-for-profit association of persons who are bona fide members paying dues and where facilities are restricted to members and their guests. Food and alcoholic beverages may be served on its premises provided they are secondary and incidental to the principal use, and further providing that adequate dining room space and kitchen facilities are available and that the sale of alcoholic beverages is in compliance with applicable federal, state, and City of Aurora laws.
Commercial Vehicle: A vehicle that does not exceed the standards of a State of Illinois licensure classification of "B," (including, but not limited to, contractor's vans, mini-school buses, pick-up trucks, and smaller stake trucks).
Committee: The standing committee of the city council authorized by chapter 34 of this code to review matters referred from the planning and zoning commission.
Commission: The planning and zoning commission of the city.
Comprehensive Plan: The comprehensive plan adopted by the city council for the city or portion thereof pursuant to law.
Conditional Use: Any use of land or buildings, or both, described and permitted herein, subject to the provisions of the Use Regulations Section and the requirements of chapter 34.
Corner Lot: See lot, corner.
Corner Lot, Reversed: See lot, reversed corner.
Coverage, Lot: See lot coverage.
Curb Level: The level of the established curb in front of the building measured at the center of such front. Where a building faces on more than one (1) street, the "curb level" shall be the average of the levels of the curbs at the center of the front of each street. Where no curb elevation has been established, the mean level of the land immediately adjacent to the building shall be considered the "curb level."
Currency Exchange: An establishment, except a bank, a post office, trust company, savings bank, savings and loan association, credit union, industrial loan and thrift company, engaged in the business of cashing checks, drafts, money orders or traveler's checks, exchanging currency or transmitting money within the United States or overseas by any means for a fee. Check cashing shall not include stand-alone services located inside buildings so long as service incorporates no signage in the windows of the building visible from public view. For purposes of zoning, a currency exchange is considered an Alternative Financial Service.
Dog Run: An enclosed outdoor area intended for the exercising and/or containment of dogs.
Downtown Core: The downtown core shall be as described in the Downtown Core Section hereof.
Downtown Fringe: The downtown fringe shall be as described in the Downtown Fringe Section hereof.
Dish Antenna: A parabolic-shaped receiver and/or transmitter for entertainment and communication transmissions.
Drive-In Establishment: A business establishment, other than a drive-in or drive-through restaurant, so developed and used that its retail or service character is dependent, in whole or in part, on providing a driveway approach for motor vehicles to serve patrons while in the motor vehicle rather than within a building or structure.
Drive-Through Restaurant: An eating establishment that provides a driveway approach for the serving of food and beverages to customers in a motor vehicle and which may also provide an indoor seating area with a minimum of two (2) tables and four (4) chairs. Accessory outdoor seating may be provided. Carryout and delivery service must be an accessory use.
Dwelling: A building or portion thereof, but not including a house trailer or mobile home, designed or used exclusively for residential occupancy, including one-family dwelling units, two-family dwelling units and multiple-family dwelling units, but not including hotels, boardinghouses or lodging houses.
Dwelling, Group: Two (2) or more one-family, two-family or multiple-family dwellings, or boardinghouses or lodging houses, located on one (1) zoning lot, but not including tourist courts or motels.
Dwelling, Multiple-Family: A building or portion thereof designed or altered for occupancy by three (3) or more families living independently of each other.

Dwelling, One-Family: A building designed exclusively for use and occupancy by one (1) family, and entirely separated from any other dwelling by space.

Dwelling, Row (Party Wall): A row of two (2) to six (6) attached, one-family, party wall dwellings, not more than two (2) rooms in depth measured from the building line.

Dwelling, Two-Family: A building designed or altered to provide dwelling units for occupancy by two (2) families.
Dwelling Unit: One (1) or more rooms in a residential structure or apartment hotel, designed for occupancy by one (1) family, for living and sleeping purposes.
Educational Institution: Public, parochial, charitable or nonprofit junior college, college or university, other than trade or business schools, including instructional and recreational uses, with or without living quarters, dining rooms, restaurants, heating plants and other incidental facilities for students, teachers and employees.
Electric Vehicle: A vehicle that can be powered by an electric motor that draws electricity from a battery and is capable of being charged from an external source.
Electric Vehicle Charging Station: Equipment that connects to an electric vehicle to a source of electricity to recharge the battery of the electric vehicle.
Electronic Data Storage Center: An establishment classified in use category 3300, principally used for the storage and operation of computer systems, associated components and related equipment for the maintaining, storing, processing and routing of data and related activities. An Electronic Data Storage Center shall be at least 150,000 square feet with no more than five percent (5%) of the square footage being office use.
Essential Commercial Vehicle: A Commercial vehicle, excluding a tow truck or a panel truck, that is used for essential emergency twenty-four (24) hour service such as electrical, mechanical and plumbing contracting, and does not exceed a State of Illinois licensure classification of "D" when the vehicle is also the owner's principal means of transportation to and from their place of employment
Estate Sale: A type of garage sale where any person, or family member who finds themselves needing to sell or liquidate inherited personal property, or those who are in a position of having to liquidate their own property.
Facade: Any side of a building that faces a public street or a main parking area on the site.
Family: One (1) or more persons related by blood, marriage, or adoption, or a group of not more than three (3) persons (excluding servants) who need not be related by blood, marriage or adoption, living together and maintaining a common household, but not including sororities, fraternities or similar organizations.
Financial Institutions: Banks, currency exchanges, credit unions, finance companies, brokerage offices, pay day loan stores, and other similar establishments.
Flea Market: A retail facility that is divided into booths, which can be individually rented or leased to multiple vendors.
Flood-Crest Elevation: The elevation equal to the flood-crest level of record designated by the city engineer or another governmental official or body having jurisdiction applicable to the property.
Floodplain Area: That continuous area adjacent to a stream, stream bed or any stormwater retention area and its tributaries, with an elevation equal to or lower than the flood crest elevation, including also land subject to the risk of overflow which is less than ten (10) acres in area and has an elevation higher than flood-crest elevation and which is surrounded by land with an elevation equal to or lower than the flood-crest elevation, and land subject to the risk of overflow which is less than five (5) acres in area, has an elevation equal to or higher than flood-crest elevation and is bordered on three (3) sides by land with an elevation equal to or lower than the flood-crest elevation.
Floodplain Fringe Area: An area lying outside of a floodplain area and is immediately adjacent to and adjoining the floodplain area but not extending more than one hundred (100) feet therefrom.
Floor Area: The sum of horizontal areas of each floor measured from the exterior faces of the exterior walls, including utility rooms, but excluding cellars, basements, open porches, breezeways, garages and other spaces that are not used frequently or during extended periods for living, eating, or sleeping purposes, except that enclosed space intended for habitable rooms which are to be completed within a reasonable time may be considered in computing such floor areas.
Freestanding System: An alternative energy system that is not attached to another structure and is mounted to the ground.
Garage, Bus: Any building used or intended to be used for the storage of three (3) or more passenger motorbuses, or motor coaches used in public transportation, including school buses.
Garage, Bus Or Truck: A building which is used or intended to be used for the storage of motor trucks, truck trailers, tractors and commercial vehicles exceeding one and one-half (1 1/2) tons in capacity.
Garage, Private: A detached accessory structure or portion of the principal building, fully enclosed, and designed, arranged, used or intended to be used for the storage of automobiles of the occupants of the premises.
Garage, Public: A building other than a private garage, used for the care, incidental servicing and sale of automobile supplies, or where motor vehicles are parked or stored for remuneration, hired or sale within the structure, but not including trucks, tractors, truck trailers and commercial vehicles extending one and one-half (1 1/2) tons in capacity.
Grade: For the purposes of Section 4.4-9, grade is the average ground level at the front property line of a zoning lot.
Green Businesses: A business which adopts principles, policies, and practices to minimize negative impacts of the business on the global or local environment, community, society, or economy. These businesses strive to improve the quality of life for their customers, their employees, communities, and the environment.
Gross Leasable Area (Gla): All area within the outside walls of a building less stairs, elevators, flues, pipe shafts, vertical ducts and balconies.
Ground Floor Area: The sum of horizontal areas of the ground floor measured from the exterior faces of the exterior walls, including utility rooms, but excluding cellars, basements, open porches, breezeways, garages and other spaces that are not used frequently or during extended periods for living, eating, or sleeping purposes, except that enclosed space intended for habitable rooms which are to be completed within a reasonable time may be considered in computing such floor areas.
Guesthouse: Living quarters within a detached accessory building located on the same premises with the principal building for use by contemporary guests of the occupants of the premises. Such quarters shall have no kitchen facilities nor be rented or otherwise used as a separate dwelling.
Health Club: The meeting place of a group of persons organized for the purpose of improving the general condition of their health through exercise.
Helicopter: Any rotary wing aircraft which depends principally for its support and motion in the air upon the lift generated by one (1) or more power-driven rotors rotating on a substantially vertical axis. All helicopters using heliports/helistops shall comply with Federal Aviation Regulation (FAR) part 336.
Heliport: Any area of land, water or structural surface which is designed, used or intended to be used for the landing and takeoff of helicopters and any pertinent areas which are designed, used or intended to be used for a helicopter building or other facilities which have received a certificate of approval from the Division of Aeronautics, State of Illinois, Department of Transportation and a conditional use permit from the city to operate said heliport.
Helistop: An aeronautic facility used for periodic on and off loading of passengers and/or cargo as carried by helicopters with little or no ground support capability.
Home Occupation: A Home Occupation is defined as any use that may be conducted entirely within a dwelling and carried on by the inhabitants and up to one employee who is not a resident thereof and clearly incidental or secondary to the use of the dwelling for dwelling purposes and does not change the character thereof.
Hospital: An institution open to the public in which patients or injured persons are given medical or surgical care; or for the care of contagious diseases or incurable patients.
Householder: The occupant of a dwelling unit who is either the owner or lessee thereof.
Impact Area: The impact area consists of all zoning lots within 250 feet of a subject zoning lot and fronting on the public street that the infill lot fronts on.
Infill Lot: A zoning lot within an existing developed urban area where no more than four (4) zoning lots within the “impact area” have had new housing built upon them within the five (5) year period preceding the application date of a building permit for a zoning lot.
Individually Accessible Parking Space: A required parking space that is designed so that access to said space shall not be obstructed by use of another required parking space.
Junkyard: Open area where waste, scrap metal, paper, rags or similar materials are bought, sold, exchanged, stored, baled, packed, disassembled or handled, including auto and building wrecking yards, but excluding similar uses taking place entirely within a completely enclosed building.
Kennel, Commercial: Any lot or premises on which two (2) or more domestic animals, at least four (4) months of age, are kept, boarded for compensation, or kept or bred for sale.
Kiosk: An area within a structure, which is not wholly enclosed within its own unit is staffed by an attendant, and maybe used as a subordinate business to the primary business. A Kiosk is typically, but not required to be, delineated by a booth(s), counter(s) or table(s).
Laboratory, Commercial: Laboratory is a building, structure, or portion thereof which is devoted to experimental study such as testing and analyzing but not including the manufacturing, assembly, or packaging of products for sale either directly or indirectly.
Laboratory, Research: A building or group of buildings in which are located facilities for scientific research, investigation, testing and experimentation, but not primarily facilities for the manufacture or sale of products, except as incidental to the main purpose of the laboratory.
Land Use Division Line: The line, parallel to a major street and which serves as a boundary between commercial and residential developments on a single parcel.
Large Scale Development: A development or redevelopment project having gross leasable area of thirty thousand (30,000) square feet or greater, which is developed as a unit under unified or coordinated control of its planning and development.
Limited-Access Highway: A public highway or street, including a toll highway, designed for through traffic and to, from or over which owner of, or persons having interest in, abutting property or other persons having no right or easement, or only limited right or easement, of access, crossing, light, air or view by reason of the fact that said property abuts upon such highway or street, or for any other reason.
Line Of A Building (For Measuring Yards): A line parallel to the nearest lot line drawn through the point of a building or group of buildings nearest to such lot line, exclusive of such features specified as being permitted to extend into a yard.
Livestock: Animals, including but not limited to cattle, pigs, and poultry, raised for food or other products.
Loading And Unloading Space, Off-Street: An open hard-surfaced area of land other than a street or a public way, the principal use of which is for the standing, loading and unloading of motor trucks, tractors and trailers, to avoid undue interference with the public use of streets and alleys. Such space shall be not less than ten (10) feet in width, forty-five (45) feet in length and fourteen (14) feet in height, exclusive of access aisles and maneuvering space.
Lodging House Or Rooming House: A building with not more than five (5) guestrooms where lodging is provided for compensation pursuant to previous arrangement, but not open to the public or to overnight guests.
Lodging Room: A room rented as sleeping and living quarters, but without cooking facilities and with or without an individual bathroom. In a suite of rooms without cooking facilities, each room that provides sleeping accommodations shall be counted as one (1) lodging room for the purposes of this ordinance.
Lot: The word "lot" when used alone shall mean a "zoning lot" unless the context of this ordinance clearly indicates otherwise.
Lot, Corner: A parcel of land situated at the intersection of two (2) or more public and/or private streets or adjoining a curved street at the end of a block.


Lot Coverage: The maximum area of a zoning lot, expressed as a percentage of a lot’s total area, which can be covered. This includes, but is not limited to the principal building or buildings, accessory structures, hardscape (driveways, sidewalks, pavement or any area of concrete asphalt, permeable pavement, gravel) and in-ground pools. Free-standing hot tubs, vehicles, above-ground pools, and decks do not count toward lot coverage calculations.
Lot Depth: The horizontal distance between the front and rear lot lines measured in the mean direction of the side lot lines.

Lot, Frontage: The front of a lot shall be that boundary of a lot along a public street; for a corner lot, the owner may elect either street line as the front lot line.

Lot, Interior: A lot other than a corner, reversed corner, or through lot.

Lot Line, Exterior: A side lot line of a corner lot, said line being common with a public street property line. This definition includes front lot lines, exterior rear lot lines and exterior side lot lines.

Lot Line, Exterior Rear: A rear lot line on a zoning lot that abuts a right-of-way.
Lot Line, Exterior Side: A side lot line on a zoning lot that abuts a right-of-way.
Lot Line, Front: The front property line of a zoning lot. (see figure in definition of lot line, exterior)
Lot Line, Interior: A side lot line common with another lot and which does not abut a right-of-way. This definition includes interior side lot lines and interior rear lot lines. (see figure in definition of lot line, exterior)
Lot Line, Interior Rear: A rear lot line that does not abut a right-of-way.
Lot Line, Interior Side: A side lot line that does not abut right-of-way.
Lot Line, Rear: The "rear lot line" is the lot line or lot lines most parallel to and most remote from the front lot line. Lot lines other than front or rear lot lines are side lot lines. (see figure in definition of lot line, exterior)
Lot, Reversed Corner: A corner lot, the rear of which abuts upon the side of another lot, whether across an alley or not.

Lot, Through (Also referred To As A Double Frontage Lot): A lot having frontage on two (2) parallel or approximately parallel streets, and which is not a corner lot.

Lot, Width: The horizontal distance between the side lot lines measured at right angles to the lot depth at the established front building line.

Lot, Zoning: See zoning lot.
Manufacture: The making of anything by any agency or process.
Manufacturing Establishment: A lot and structure, the principal use of which is manufacturing, fabricating, processing, assembling, repairing, storing, cleaning, servicing, or testing of materials, goods or products.
Marquee Or Canopy: A roof like structure of a permanent nature, which projects from the wall of a building and overhangs the public way.
Motor Freight Terminal, Private: A building in which freight, brought to said building by motor truck, is assembled and sorted for routing in intrastate and interstate shipment by motor truck.
Motor Truck Repair Shop: A premise where motor trucks, tractors, truck trailers and industrial and commercial vehicles in excess of one and one-half (1 1/2) tons in capacity, or their bodies, are overhauled, rebuilt or repaired.
Nightclub: A place of entertainment open at night, for eating, drinking, dancing, etc., and usually having a floorshow.
Nonconforming Use: Any building, structure or land lawfully occupied by a use or lawfully established at the time of the adoption of this ordinance or amendments hereto, which does not conform after the adoption of this ordinance or amendment hereto with the use regulations of this ordinance.
Noxious Matter: Noxious matter is material that is capable of causing injury to living organisms by chemical reaction or is capable of causing detrimental effects upon the psychological, social or economic well being of individuals.
Nursery, Day: An institution providing care for three (3) or more children under the age of four (4) years for periods of more than four (4) hours, but not exceeding twenty-four (24) hours.
Nursery School: An institution providing day care service for children from four (4) to six (6) years of age.
Nursing Home Or Rest Home: A private home for the care of children or the aged or infirm, or a place of rest for those suffering bodily disorders, but not including facilities for the treatment of sickness or injuries or for surgical care, and which is licensed by the state and city if required by ordinance.
Octave Band: An "octave band" is a means of dividing the range of sound frequencies into octaves in order to classify sound according to pitch.
Operating Hours: Those hours that a business is functioning, open, and accessible to the general public for the purposes of conducting business.
Panel Truck Or Step Van: A motor vehicle designed, used or maintained primarily for transportation of property which does not exceed the standards of a State of Illinois licensure classification of "B" and which is at least eight and one-half (8 1/2) feet in height and eighteen (18) feet in length.
Parcel Delivery Station: A building in which commodities, sold at retail within the area and packaged by the retailer, are assembled and routed for delivery to retail customers located within the area.
Park, Community: An active or passive recreational facility for all age groups within driving distance of its location (typically a thirty-minute driving time), which has an emphasis on family and group programmed activities available on a year-around basis.
Park, Communitywide Special: An active or passive recreational facility for all age groups, which has an emphasis on one or more singular purpose activities outside the normal park setting.
Park, Conservation/Protection: A passive recreational facility for all age groups, which has an emphasis on preserving environmentally sensitive areas and natural resource features.
Park, Linear: A recreational facility for all age groups, which has an emphasis on providing non-motorized recreational trail opportunity and regional linkages with other the open space system.
Park, Neighborhood: A passive recreational facility with limited active capability for all age groups within walking distance of its location (typically one-half-mile radius), which has an emphasis on informal play activities rather than intensely scheduled activities
Parking Area, Private: An open, hard-surfaced area of land, other than a street or public way, designed, arranged and made available for the storage of private passenger automobiles only, of occupants of the building or buildings for which the parking area is developed and is accessory. All parking spaces must be individually accessible, and meet the requirements set forth in the Off-Street Parking and Loading/Design and Maintenance/Size section of this ordinance; if not the parking area shall be considered a Vehicle Storage Yard.
Parking Area, Public: An open, hard-surfaced area, other than a street or public way, intended to be used for the storage of passenger automobiles and commercial vehicles under one-and-one-half-ton capacity, and available to the public, whether for compensation, free or as an accommodation to clients or customers. All parking spaces must be individually accessible, and meet the requirements set forth in the Off-Street Parking and Loading/Design and Maintenance/Size section of this ordinance; if not the parking area shall be considered a Vehicle Storage Yard.
Parking Space, Automobile: Space within a public or private parking area of not less than one hundred and seventy (170) square feet (eight and one-half (8 1/2) feet by twenty (20) feet), exclusive of access drives or aisles, ramps, columns or office and work areas, for the storage of one (1) passenger automobile or commercial vehicle under a one-and-one-half-ton capacity.
Parsonage: The dwelling provided by a religious institution for the use of its minister or priest, in which no regular worship assemblies are held.
Particulate Matter: Particulate matter is material that is suspended in or discharged into the atmosphere in finely divided form as a liquid or solid at atmospheric pressure and temperature.
Passenger Vehicle: A motor vehicle which is self-propelled and designed for not more than twelve (12) persons.
Payday Loan Store: A business establishment that provides loans to individuals in exchange for one or more of the following forms of collateral, which are held for an agreed upon period of time prior to presentment for payment or deposit: personal checks, authorization to debit consumers' bank accounts, or interest in consumers' wages, including, but not limited to, wage assignments. For purposes of zoning a payday loan store is considered an Alternative Financial Service.
Performance Standards: Performance standards are criteria established to control noise, odor, glare and heat, exterior lighting, vibration, smoke, toxic or noxious matter, gases, particulate matter, fire and explosion hazards, wastes, and radiation hazards generated by or inherent in uses of buildings, structures, or land. Some of the terms most used in performance standards include but are not limited to the following:
Person(S) With Disabilities: For the purposes of this ordinance, persons with disabilities shall refer to those persons covered under the Americans with Disabilities Act.
Pilot Plant: A building or structure used for the testing of commercial or industrial processes and products and for the manufacturing of products for testing purposes.
Planned Development: A "planned development" is a tract of land which includes two (2) or more principal buildings and one (1) or more principal uses and which is developed as a unit under single ownership or under single, unified or coordinated control of its planning and development.
Police Incident: A documented service call chronicled by the City's Police Department Records Division, which call occurs with regard to a given property, concerning quality of life issues for the residents of said property and the surrounding neighborhood, and involving crimes against people, crimes against property, drug/alcohol violations, and related matters.
Poolrooms: As defined Chapter 8 AMUSEMENTS of the Aurora Code of Ordinances.
Porch: A roofed-over structure, projecting out from the wall or walls of a main structure and commonly open to the weather in part.
Property Maintenance Ordinance: Article IV of Chapter 12, et. seq. of the Code of Ordinances, City of Aurora, Illinois
Property User: The owner, lessee, licensee or other party occupying each lot or similarly defined property for the purpose of operating a business.
Public Street Elevation: See Street Elevation, Public
Public Utility: Any person, firm, corporation or municipal department, duly authorized to furnish under public regulation to the public, electricity, gas, steam, telephone, telegraph, transportation or water.
Railroad Right-Of-Way: A strip of land with tracks and auxiliary facilities for track operations, but not including depots, loading platforms, stations, train sheds, warehouses, car shops, car yards, locomotive shops or water towers.
Recreational Vehicle: A vehicle originally designed or modified for living quarters, human habitation, or recreation and not used as a commercial vehicle, including, but not limited to, the following:
Residential Area: A zoning lot or portion of a zoning lot designed or used exclusively for residential purposes.
Restaurant: An establishment where food and beverages can be purchased and eaten on the premises. Must provide an indoor seating area with a minimum of two (2) tables and four (4) chairs. Accessory outdoor seating may be provided. Carryout and delivery service may only be an accessory use. Establishments with drive-in or drive-through services are not permitted.
Restaurant, Hotel: An establishment where food and beverages can be purchased and eaten on the premises. Must provide an indoor seating area with a minimum of seventy five (75) seats, room service, and must have outside signage. Accessory outdoor seating may be provided.
Ringelmann Number: The "Ringelmann Number" is the number of the area on the Ringelmann Chart that coincides most nearly with the visual density of emission.
Roof Line: The part of the roof or parapet that covers the major area of the building.
Roof Types: The following roof types are illustrative examples of roofs types referenced to in the zoning ordinance.
Semi-Trucks: A truck that consist of a tractor and a trailer.
Setback: The minimum distance by which any building or structure must be separated from any existing or proposed lot lines.
Setback Line: A line designating the minimum distance a building or structure must be setback from any existing or proposed lot line.
Setback Line, Building: The line nearest the front of and across a lot establishing the minimum open space to be provided between the front line of a building or structure and the street right-of-way line.

Setback Line, Exterior: A line parallel to and at a distance from the exterior lot line that establishes the minimum distance between the exterior lot line and a structure on a lot.

Setback Line, Interior: A line parallel to and at a distance from the interior lot line that establishes the minimum distance between the interior lot line and a structure on a lot (see figure in definition of setback line, exterior).
Setback Line, Front: A line parallel to and at a distance from the front lot line that establishes the minimum distance between said lot line and a structure on a lot (see figure in definition of setback line, exterior).
Setback Line, Exterior Front: A line parallel to and at a distance from the front lot line that establishes the minimum distance between said lot line and a structure on a lot (see figure in definition of setback line, exterior).
Setback Line, Exterior Rear: A line parallel to and at a distance from the exterior rear lot line that establishes the minimum distance between said lot line and a structure on a lot (see figure in definition of setback line, exterior).
Setback Line, Exterior Side: A line parallel to and at a distance from the exterior rear lot line that establishes the minimum distance between said lot line and a structure on a lot (see figure in definition of setback line, exterior).
Setback Line, Interior Rear: A line parallel to and at a distance from the interior rear lot line that establishes the minimum distance between said lot line and a structure on a lot (see figure in definition of setback line, exterior).
Setback Line, Interior Side: A line parallel to and at a distance from an interior side lot line that establishes the minimum distance between said lot line and a structure on a lot. (see figure in definition of setback line, exterior).
Sign: A "sign" is a name, identification, description, display or illustration which is affixed to, or painted, or represented directly or indirectly upon a building, structure or piece of land, and which directs attention to an object, product, place, activity, person, institution, organization or business; however, a sign shall not include any display of official court or public office notices nor shall it include the flag, emblem or insignia of a nation, political unit, school or religious group. It shall not include a sign located completely within an enclosed building unless the context shall so indicate. Each display of a sign shall be considered to be a sign.
Sign, Advertising: An "advertising sign" is a sign that directs attention to a business, commodity, service or entertainment conducted, solid or offered elsewhere than upon the premises where such sign is located, or to which it is affixed.
Signs, Business: A "business sign" is a sign that directs attention to a business or profession conducted or to a commodity, service or entertainment sold or offered upon the premises where such sign is located, or to which it is affixed.
Sign, Flashing: A "flashing sign" is any illuminated sign on which the artificial light is not maintained stationary and/or constant in intensity and color at all times when such sign is in use. For the purpose of this ordinance, any revolving, illuminated sign shall be considered a flashing sign.
Sign, Gross Surface Area Of: The gross surface area of a sign shall be the entire area within a single continuous perimeter enclosing the extreme limits of such sign and in no case, passing through or between any adjacent elements of same; however, such perimeter shall not include any structural or framing elements lying outside the limits of such sign and not forming an integral part of the display.
Sign Ordinance: Chapter 41 of the Code of Ordinances, City of Aurora, Illinois.
Shed: A detached accessory structure, fully enclosed, which serves as a place of storage or shelter of household items incidental to the principal use of the main building or premises.
Slaughterhouse: An establishment where livestock are killed/slaughtered on premises. This use shall be considered as a heavy industrial use for the purpose of this ordinance.
Smoke Units: Smoke units represent the number obtained by multiplying the smoke density in Ringelmann Numbers by the time of emission in minutes. For the purpose of this calculation, a Ringelmann density reading is made at least once every minute during the period of observation; each reading is then multiplied by the time in minutes during which it is observed, and the various products are added together to give the total number of smoke units observed during the total period under observation.
Solar Energy System: A system that converts solar energy into electricity or heat through the use of photovoltaic panels or film, solar thermal panels, and associated control or conversion electronics.
Special Use: See Conditional Use.
Stable, Livery: Any building, other than a private stable, designed, arranged, used or intended to be used for the storage of horses and horse-drawn vehicles, or both.
Stockyard: An enclosed or open area, in which livestock, are housed. This use shall be considered heavy industrial use for the purpose of this ordinance.
Story: That portion of a building included between the surface of any floor and the surface of the floor next above it, or if there be no floor above it, then the space between the floor and the ceiling next above it. Any portion of a story exceeding fourteen (14) feet in height shall be considered as an additional story for each fourteen (14) feet or fraction thereof.

Story, Half: A half story is that portion of a building under a gable, hip or mansard roof, the wall plates of which, on at least two (2) opposite exterior walls, are not more than four and one-half (4 1/2) feet above the finished floor of such story. In the case of one-family dwellings, two-family dwellings, and multiple-family dwellings less than three (3) stories in height, a half story in a sloping roof shall not be counted as a story for the purpose of this ordinance. In the case of multiple-family dwellings, three (3) or more stories in height, a half story shall be counted as a story.
Street: A public way other than an alley, including the following types: arterial, major collector, minor collector, local, and limited-access highway.
Street, Arterial: A major or minor street of greater continuity intended to serve as a large volume traffic way within the City of Aurora and region beyond, and so designated on the Aurora Comprehensive Plan, Land Use and Circulation. Access to abutting property is subject to control of entrance, exits, and curb use. Parking may be restricted.
Street Elevation, Public: The portion of a structures architectural elevation facing a publicly dedicated street.
Street, Major Collector: A street distributing vehicular traffic between minor collectors and arterial streets, and so designated on the Aurora Comprehensive Plan, Land Use and Circulation. A major collector street will have moderate continuity and may serve intercommunity travel.
Street, Minor Collector: A street that collects and distributes local subdivision traffic to major collectors and arterial streets, and so designated in the Aurora Comprehensive Plan, Land Use and Circulation. Although these streets have a land access function, direct residential driveway access to these streets shall be minimized.
Street, Local: A street that its primary function is a land access to abutting land and which serves local traffic carrying it to collector streets.
Street, Limited-Access Highway: A traffic way including expressways and tollroads for through traffic, in respect to which owners or occupants of abutting property or land and other persons have no legal right of access to or from the same, except at such points only and in a manner as may be determined by the public authority having jurisdiction over such traffic way. A limited-access highway provides for expeditious movement of large volumes of traffic and is not intended to give land-access service.
Street Line: A line separating an abutting lot, piece or parcel from a street.
Street, Private: An undedicated street privately owned and maintained, or an easement of access benefiting a dominant tenant.
Street, Roadway: Roadway is the paved area intended for vehicular traffic, including curb and gutter, if any.
Structural Alterations: Any change other than incidental repairs which would prolong the life of the supporting members of a building or structure, such as bearing walls, columns, beams or girders.
Structure: Anything constructed or erected which requires location on the ground or is attached to something having location on the ground.
Tavern: A building where liquors are sold to be consumed on the premises.
Tearoom: A restaurant, which is located in conjunction with and on the same premises as a retail use.
Terrace, Open: An unroofed, paved area, or a raised flat mound of earth with sloping sides not more than four (4) feet in height above the average level of the adjoining ground and immediately adjacent to a house or structure.
Title Loan Store: A business establishment that provides loans to individuals in exchange for receiving titles to the borrower's motor vehicles as collateral. For purposes of zoning a title loan store is considered an Alternative Financial Service.
Tollway: Any route so designated by the Illinois Tollway Authority, including all land within the right-of-way.
Tourist Courts, Motor Lodges, Motels: An establishment consisting of a group of attached or detached living or sleeping accommodations with bathroom and closet space, located on a single zoning lot and designed for the use by transient automobile tourists. A motel furnishes customary hotel services such as maid service and laundering of linen, telephone and secretarial or desk service and the use and upkeep of furniture. In a motel less than twenty (20) percent of the living and sleeping accommodations are occupied or designed for occupancy by persons other than transient automobile tourists.
Tourist Home: A dwelling in which accommodations are provided or offered for transient guests.
Trailer: A vehicle without its own motive power that is designed to transport belongings or another vehicle, such as a boat, motorcycle or snowmobile for recreational or vacation use and that is eligible to be licensed or registered and insured for highway use. A vehicle trailer with another vehicle mounted on it shall be considered one vehicle.
Trailer Camp, House: Any premises occupied or designed to accommodate more than one (1) family living in an automobile house trailer or mobile home.
Trailer, House Or Mobile Home: A vehicle without motive power, designed to be drawn by a motor vehicle and to be used for human habitation or for carrying persons and property, including a trailer coach or house trailer.
Transitional Use: The use of a building or lot for permitted purposes in an area adjoining, adjacent or opposite to, but separated by a street or alley from an area of a lower classification.
Truck Parking Area Or Yard: Any land used or intended to be used for the storage or parking of trucks, tractors, truck trailers, and including commercial vehicles, while not loading or unloading, and which exceed one and one-half (1 1/2) tons' capacity.
Use: The purpose for which land or a building thereon is designed, arranged or intended, or for which it is occupied or maintained, let or leased.
Used Car And Boat Lot: A zoning lot on which used cars, trailer or trucks, or boats are displayed for sale or trade.
Wind Energy System: A system that converts wind energy into electricity through the use of wind turbines, a tower or post, mounting hardware, and associated control or conversion electronics.
Wholesale Establishment: Any building wherein the primary occupation is the sale of merchandise in gross for resale, and any such building wherein the primary occupation is the sale of merchandise to institutional, commercial and industrial consumers.
Yard: An open space on the same zoning lot with a principal building or group of buildings, which is unoccupied and unobstructed from any portion of the building from the ground upward, except as otherwise permitted in this ordinance, and which extends along a lot line and at right angles thereto to a depth or width extending to the specified line or lines of the principal building.

Yard, Corner: See yard, exterior side.
Yard, Exterior: A front, exterior side or exterior rear yard. (see figure in definition of yard)
Yard, Exterior Rear: Portions of a rear yard that are adjacent to a public street right-of-way. (see figure in definition of yard)
Yard, Exterior Side: The area lying between the exterior lot line and the nearest line or lines of the principal building, and extending from the front yard (or from the front lot line, if there is no front yard) to the rear yard. (see figure in definition of yard)
Yard, Front: A yard extending across the full width of the zoning lot and lying between the front line of the lot and the line or lines of the principal building. (see figure in definition of yard)
Yard, Interior: An interior side or interior rear yard. (see figure in definition of yard)
Yard, Interior Rear: A rear yard abutting any use except a public street right-of-way. (see figure in definition of yard)
Yard, Interior Side: The area lying between the interior lot line and the line or lines of the principal building, and extending from the front yard (or from the front lot line, if there is no front yard) to the rear yard. (see figure in definition of yard)
Yard, Rear: A yard extending across the full width of the zoning lot and lying between the rear line of the lot and the line or lines of the principal building.

Yard, River: The area lying between the setback line and the Fox River retaining wall, if such exists, or the mean watermark, as determined by the city engineer. The setback shall be measured horizontally. The purpose of such yard shall be to beautify the riverbank, to provide for pedestrian enjoyment, circulation and access among various businesses and activities. Within such yards pedestrian walkways, bicycle paths, pedestrian plazas and landscaping are permitted. Buildings, storage of materials or equipment, or vehicular parking, accessways or maneuvering areas shall not be permitted in the river yard.
Yard, Side: That part of the yard lying between the line or lines of the principal building and a side lot line, and extending from the front yard (or from the front lot line, if there is no front yard) to the rear yard. (see figure in definition of yard)
Zoning Administrator: The zoning administrator of the city.
Zoning Lot: A plot of ground, made up of one (1) or more parcels that is or may be occupied by a use, building or buildings including the open spaces required by this ordinance.
Zoning Maps: The map or maps incorporated into this ordinance as a part hereof.
ESTABLISHMENT OF ZONE DISTRICTS
In order to carry out the purposes and provisions of this ordinance, the city council hereby divides the city into the following use districts:
| ABBREVIATION | DISTRICT NAME |
| OPEN SPACE, PARK, RECREATION DISTRICT | |
| OS-1 | Conservation, Open Space, and Drainage District |
| OS-2 | Open Space and Recreation District |
| P | Park and Recreation District |
| RESIDENTIAL DISTRICTS | |
| E | One-Family Dwelling District |
| R-1 | One-Family Dwelling District |
| R-2 | One-Family Dwelling District |
| R-3 | One-Family Dwelling District |
| R-4 | Two-Family Dwelling District |
| R-4A | Two-Family Dwelling District |
| R-5 | Multiple-Family Dwelling District |
| R-5A | Midrise Multiple-Family Dwelling District |
| BUSINESS DISTRICTS | |
| B-1 | Business District Local Retail |
| B-2 | Business District General Retail |
| B-3 | Services and Wholesale District |
| B-B | Business-Boulevard District |
| MANUFACTURING DISTRICTS | |
| M-1 | Manufacturing District Limited |
| M-2 | Manufacturing District General |
| OTHER DISTRICTS | |
| ORI | Office, Research and Industrial |
| R-D | Research & Development District |
| DC | Downtown Core |
| F | Downtown Fringe |
| O | Office |
| PDD | Planned Development District |











A = Not permitted in front yard or required front setback.


| Maximum Quantity Allowed by Rated Capacity | Maximum Total System Height | |||||
| Zoning Lot Size (in sq ft) | less than/ equal to 5kW | less than/ equal to 20kW | less than/ equal to 40kW | 60 feet | 80 feet | 100 feet |
| 11,000 - 29,999 | 1 | none | none | ● | none | none |
| 30,000 - 129,999 | unlimited | unlimited | none | ● | ● | none |
| greater than/equal to 130,000 | unlimited | unlimited | unlimited | ● | ● | ● |







Shall be pursuant to district specific regulations, if any.

Shall be pursuant to district specific regulations, if any.
Shall be pursuant to district specific regulations, if any.
A newly-constructed single family detached home may not be located next to, across the street from, or cater-corner from another such newly-constructed or existing residential structure which has the same front elevation or the same configuration of building materials or the same colors facing the public street.
All outdoor lighting fixtures shall be designed, shielded, aimed, located and maintained to shield adjacent properties and not to produce glare onto adjacent properties or roadways.

I USE AND STRUCTURE REGULATIONS
In the construction of this ordinance, the rules and definitions contained in this section shall be observed and applied, except when the context clearly indicates otherwise.
1300 Hotel, Motel, Or Other Accommodation Services: This category is comprised of establishments which serve lodging accommodations for travelers and must be staffed with twenty-four-hour clerk service, maid and janitor services. They may offer a wide range of services, from overnight sleeping space to full-service hotel suites. They may offer these services in conjunction with other activities, such as entertainment or recreation.
1310 Bed And Breakfast Inn: This is a 1300 use category which is comprised of establishments which operate primarily in private homes and small buildings.
1320 Rooming And Boarding/Single Room Occupancy: This is a 1300 use category which is comprised of accommodation services such as rooming and boarding and single room occupancy establishments, rooming and boarding establishments serve a specific group or membership, such as a dormitory, fraternity or sorority house, or workers' camp, they provide accommodations and may offer housekeeping, meals, and laundry services. Single Room Occupancy are establishments where a room is provided, for compensation pursuant to previous arrangement, as sleeping and living quarters, but without cooking facilities and with or without an individual bathroom. Including but not limited to Lodging house; Rooming house; Dormitory
1330 Hotel, Minor: This is a 1300 use category which is comprised of establishments with fewer than fifty (50) guest rooms established prior to December 01, 1992.
1340 Motel: This is a 1300 use category which is comprised of establishments with no common corridor to access guest rooms, the rooms are individually accessible from the outside. Including but not limited to Tourist Courts; Motor Lodges; and Motels.
1350 Hotel, Limited Service: This is a 1300 use category which is comprised of establishments that have more than fifty (50) guest rooms, and has meeting space/banquet facilities for less than 100 persons, no food service and none or one of the following amenities: swimming pool, exercise facility, gift shop or hotel restaurant within the physical confines of the hotel.
1360 Hotel, Select Service: This is a 1300 use category which is comprised of establishments that have more than fifty (50) guest rooms, and has meeting space/banquet facilities for between 100 and 200 persons, limited food service (i.e. continental breakfast) and two or more of the following amenities: swimming pool, exercise facility, gift shop or hotel restaurant within the physical confines of the hotel. In addition to these required amenities others may also be provided for guests including but not limited to: spa facilities, dry cleaning service, recreational activities, or entertainment.
1370 Hotel, Full Service: This is a 1300 use category which is comprised of establishments that have more than one hundred and twenty (120) guest rooms, and has meeting space/banquet facilities for between 200 and 1,000 persons, a hotel restaurant within the physical confines of the hotel and room service that is accessory to the restaurant use and all three of the following amenities: swimming pool, exercise facility, and gift shop. In addition to these required amenities others may also be provided for guests including but not limited to: spa facilities, dry cleaning service, recreational activities, or entertainment.
1380 Hotel, Convention: This is a 1300 use category which is comprised of establishments that have at least 200,000 square feet of floor area of which a minimum of 50% must be occupied by meeting space/banquet facilities, and has meeting space/banquet facilities for at least 1,000 persons, a minimum of one hotel restaurant within the physical confines of the hotel and room service that is accessory to the restaurant use and all three of the following amenities: swimming pool, exercise facility, and gift shop. In addition to these required amenities others may also be provided for guests including but not limited to: spa facilities, dry cleaning service, recreational activities, or entertainment.
1510 Community Residence, Minor: This 1500 use category is comprised of establishments where a dwelling structure is occupied by a group of four (4) to six (6) unrelated persons with disabilities with onsite support staff provided by a sponsoring agency.
1520 Community Residence, Major: This 1500 use category is comprised of establishments where a dwelling structure is occupied by a group of seven (7) or more unrelated persons with disabilities with onsite support staff provided by a sponsoring agency.
1530 Community Residence, Transitional: This 1500 use category is comprised of establishments where a dwelling structure is occupied by a group of unrelated persons who have been paroled for criminal offenses, or a dwelling structure which serves as an alternative to incarceration for persons with criminal offenses. Including but not limited to, work release center, halfway house (correctional), transitional living quarters or comparable facilities.
2115 Cannabis Dispensing Facility: A facility operated by an organization or business that is licensed by the Department of Financial and Professional Regulation to acquire cannabis from a registered cannabis cultivation facility for the purpose of dispensing cannabis, cannabis infused products, cannabis seeds, paraphernalia, or related supplies and educational materials to purchasers or registered qualifying patients and caregivers.
2160 Pawnshop: A Business establishment that provides loans on the security of pledged goods left in pawn, or in the business of purchasing tangible personal property to be left in pawn on the condition that it may be redeemed or repurchased by the seller for a fixed price within a fixed period of time
2195 Automated/Unstaffed Business Devices: This 2100 use category consists of any automated device which dispenses, sells, vends, or collects goods or services with no attendant required. Including but not limited to vending machines, “atm” banking machines, newspaper stands, and other coin/card operated devices.
2195.1 Donation Collection Bin: This 2100 use category consists of containers intended to accept and store donated items for collection.
2198 Garage Sale: This 2100 use category consists of general sales conducted from a residential property which is open to the public for the purpose of disposing personal property.
2199 Farmers Market: This 2100 use category consists of a public market at which farmers and often other vendors sell produce directly to the consumer.
2220 Alternative Financial Services Businesses: This category is the use of a site for a check cashing business, payday advance or loan business, money transfer business, motor vehicle title loan business, cash-for-gold establishments or a credit access business as defined in this section. This use excludes: (1) a state or federally chartered bank, savings and loan association or credit union, or a pawnshop; and (2) a convenience store, supermarket, or other retail establishment where consumer retail sales constitute at least 75% of the total gross revenue generated on site.
2520 Drive–In Restaurant: An eating establishment whose principal business is the sale of food and beverages served directly to the customer in a motor vehicle by an employee outside the confines of the building.
2831 Gasoline Station: A place where gasoline or any other automotive engine fuel stored only in underground tanks, kerosene, or lubricating oil or grease for the operation of motor vehicles or boats are offered for sale directly to the public on the premises. Minor automotive repairs, accessories and servicing is permitted. Major automotive or boat repairs; tire recapping; and the washing of motor vehicles where no production-line methods, mechanized devices, or combination thereof is employed are not permitted. When the dispensing, sale or offering for sale of motor fuels or oil is incidental to the conduct of a public garage, the premises shall be classified as a public garage.
2832 Car Wash, Multiple Bay: A structure, or portion thereof, containing two (2) or more bays for the washing of motor vehicles by manual means, by self-serve means, by mechanized means, by means of a production line, or any combination thereof; or which has an operating capacity of two (2) or more vehicles at any one (1) time.
2833 Car Wash, Single Bay: A structure, or portion thereof, containing one (1) bay where motor vehicles are washed by means of a fully automated mechanized process, and which has an operating capacity of only one (1) vehicle at any one (1) time.
2834 Vehicle Repair, Minor: Incidental repairs, replacement of parts, and motor service to motor vehicles, but not including any operation specified under "Vehicle repair, major" or the servicing of small automotive engines.
2835 Hand Wash, Detail Shop: A building where motor vehicles are washed, waxed, polished or cleaned by hand; but not including any operation specified under "Car Wash, multiple or single bay".
2836 Vehicle Repair, Major: Engine rebuilding or major reconditioning of worn or damaged motor vehicles, trailers, boats, industrial equipment, automotive or industrial engineering; collision service, including body, frame or fender straightening or repair; and overall painting of vehicles but not including the recapping of tires, or the processing of other rubber or synthetic materials that may be used in the repair of the vehicles only.
2841 Truck Stop Establishments: A place where gasoline or any other automotive engine fuel stored only in underground tanks, kerosene, or lubricating oil or grease for the operation of motor vehicles or boats are offered for sale directly to the public on the premises. These establishments have one or more diesel fuel stations with bays that are designed to accommodate semi-trucks or other commercial vehicles. Minor automotive repairs, accessories and servicing is permitted. Major automotive or boat repairs; tire recapping; and the washing of motor vehicles where no production-line methods, mechanized devices, or combination thereof is employed are not permitted. When the dispensing, sale or offering for sale of motor fuels or oil is incidental to the conduct of a public garage, the premises shall be classified as a public garage.
3110 Food, Textiles, And Related Products: This is a 3100 use category which is comprised of establishments which produce food products for intermediate or final consumption in a process that primarily uses raw materials from agricultural products. Including but not limited to establishments that produce tobacco, textiles, and leather products, beverage bottling and distributing; canning and preserving; food manufacture, packaging and processing; ice cream and ice manufacture.
3112 Cannabis Processing Facility: A facility operated by an organization or business that is licensed by the Illinois Department of Agriculture to either extract constituent chemicals or compounds to produce cannabis concentrate or incorporate cannabis or cannabis concentrate into a product formulation to produce a cannabis product.
3113 Cannabis Infuser Facility: A facility operated by an organization or business that is licensed by the Illinois Department of Agriculture to directly incorporate cannabis or cannabis concentrate into a product formulation to produce a cannabis-infused product.
3150 Recycling Centers: This 3100 use category is comprised of establishments which are entirely within a completely enclosed building where scrap metal, paper, rags or other recyclable materials are bought, sold, exchanged, stored, baled, packed, disassembled or handled, but excluding recycling yards/junk shops.
3300 Warehouse, Distribution & Storage Services: This 3300 Use Category is comprised of establishments which primarily provide storage for general merchandise, refrigerated goods, other warehouse products or computer systems and associated components. Uses in this category provide the facilities to store goods but do not sell the goods they handle. They may also provide a range of services related to the distribution of goods, such as labeling, breaking bulk, inventory control and management, light assembly, order entry and fulfillment, packaging, pick and pack, price marking and ticketing, transportation arrangement or processing and distribution of large amounts of data. This includes but is not limited to the following: Cartage (local), express hauling, Electronic Storage Data Centers, cryptocurrency facilities, and warehousing and distribution facilities, but excluding motor freight terminals. Motor Freight Terminals are categorized under 3310 Vehicle Terminals and Storage.
3410 Recycling Yards/Junk Shops: This 3400 use category is comprised of establishments which consist of an open area where scrap metal, paper, rags or other recyclable materials are bought, sold, exchanged, stored, baled, packed, disassembled or handled, including auto and building wrecking yards, but excluding recycling centers. This use shall be wholly enclosed by a solid wall or fence, not less than 7 feet in height, and no material shall be piled or stacked to a height of fifteen (15) feet above the ground level.
4142 Cannabis Transporting Facility: An facility operated by an organization or business that is licensed by the Illinois Department of Agriculture to transport cannabis on behalf of a cannabis business establishments or a community college licensed under the Community College Cannabis Vocational Training Pilot Program.
4210 Above Ground Communication And Electric Utility Facility: An above ground structure used by a wire utility, such as telephone, cable, cell towers, or electric service, to provide services to the public where the structure is sized greater than 4’ x 3’ x 2’
4310 Alternative Energy System: For the purposes of Section 49-104.4(i), alternative energy system refers to a system that converts sunlight or wind into usable energy.
5200 Special Purpose Recreational Institutions: This 5000 use category is comprised of establishments which, as a primary use, provide facilities for amusement, entertainment or recreational activities. Including but not limited to the following: arcade, auditorium, stadium, arena, armory, gymnasium, or other similar places for public events; health club, bowling alley, dance hall, skating rink, archery range, golf practice range, miniature golf course, swim club, tennis, handball and racquetball club and similar activities.
5210 Community Center: This 5200 use category is comprised of establishments which as a primary use provide multi-use facilities for public events, recreation and community services. Establishments in this category are public locations where members of a community may gather for group activities, social support, public information and other purposes. They may sometimes be open for the whole community or for a specialized group within the greater community.
5230 Golf Courses, Public Or Private: This 5200 use category is comprised of establishments which, as a primary or accessory use, allow for playing of golf on a tract of land laid out for at least nine holes and improved with trees, greens fairways, and hazards and that may include a clubhouse and shelter.
5270 Juice Bars, Dry Cabarets, Teenage Cabarets, And Other Non-Alcoholic Bars: This 5200 use category is comprised of establishments which are designed, used or intended to be used primarily for participation by the public assembling for entertainment or amusement purposes, including but not limited to music, music videos and dancing but excludes any establishment which serves alcoholic beverages.
5400 Natural And Other Recreational Parks: This 5000 use category is comprised of establishments, the primary use of which is recreational and open space without special economic functions. Including but not limited to the following: Community parks; Communitywide special parks; Conservation/protection parks; Linear parks; Neighborhood parks; Public and private parks or playgrounds.
5410 Amusement Or Theme Park Or Fair: This 5400 use category is comprised of indoor or outdoor establishments, which may include buildings, where there are various devices for entertainment, including but not limited to rides, games, sale of items, shows and entertainment, food services, and souvenir sales. This use excludes carnivals and circuses which comply with the requirements in Chapters 8 and 9 of the Aurora Municipal Code.
6310 Day Care: Any child care facility which regularly provides day care for less than twenty-four-hour days (1) for more than eight (8) children in a family home, or (2) more than three (3) children in a facility other than a family home, which complies with all the licensing requirements for the State of Illinois, Department of Children and Family Services (refer to Illinois Revised Statutes). The child care facilities provide supplemental parental care and supervision and/or educational instruction.
6400 Religious Institutions: Establishments that operate religious organizations, such as churches, temples, monasteries, synagogues, etc.
7110 Cannabis Cultivation Facility: A facility operated by an organization or business that is licensed by the Department of Agriculture to cultivate, process, transport and perform necessary activities to provide cannabis and cannabis infused products to cannabis business establishments.
7115 Cannabis Craft Grower Facility: A facility operated by an organization or business that is licensed by the Illinois Department of Agriculture to cultivate, dry, cure and package cannabis and perform other necessary activities to make cannabis available for sale at a dispensing facilities or use at a processing organization.
7200 Community Gardening: This 7000 use category is comprised of establishments where the primary us of the land is for gardening and other horticultural uses where no building is involved and when no sale of product is conducted on the premises. This use typical includes rented or leased small plots of land where produce is grown for individual consumption.
Accessory Structures And Uses: Is one which: is subordinate to and serves a principal building or principal use; and is subordinate in area, extent, or purpose to the principal building or principal use served; and contributes to the comfort, convenience, or necessity of occupants of the principal building or principal use served; and is located on the same zoning lot as the principal building or principal use served with the single exception of such accessory off-street parking facilities as are permitted to locate elsewhere than on the same zoning lot with the building or use served.

Acre: A measure of land containing 43,560 square feet.
Adult Business Uses: Any use described as an adult use in the License, Permits and Miscellaneous Business Regulations Chapter of the Aurora Municipal Code of Ordinances.
Alley: A public way, not more than thirty (30) feet wide, which affords only a secondary means of access to abutting property.
Apartment: A room or suite of rooms in a multiple-family structure, which is arranged, designed, used or intended to be used as a single housekeeping unit. Complete kitchen facilities, permanently installed, must always be included for each apartment.
Automobile Intensive Uses: A use that caters to automobile owners by offering services for automobiles or other non-automobile related services, which can be accessed without the owner leaving the automobile. These uses include but are not limited to Automotive Service Station, Automobile Laundry, Drive-Through Restaurant, and Drive-In Establishment.
Automobile Service Bay: Any area within a building in which a business or service involving the maintenance, servicing, repairing, painting, washing, or detailing, as defined herein, of vehicles is conducted or rendered.
Automobile Uses: Any uses engaged in furnishing to the general public vehicular maintenance, service, repair, painting, washing, detailing, leasing or parking, excluding automotive service stations as defined herein.
Automobile Wrecking Yard: Any place where two (2) or more motor vehicles not in running condition, or parts thereof, are stored in the open and are not being restored to operation, or any land, building or structure used for wrecking or storing of such motor vehicles or parts thereof, and including any used farm vehicles or farm machinery, or parts thereof, stored in the open and not being restored to operating condition; and including the commercial salvaging of any other goods, articles or merchandise.
Awning: A roof like cover, temporary in nature, which projects from the wall of a building and overhangs the public way.
Basement: That portion of a building which is partly or wholly below grade. A basement shall not be counted as a story for purposes of height measurement when the vertical distance from the average finish grade to the floor is greater than the vertical distance from the average finish grade to the ceiling.
If the average of "A" is less than or equal to 1/2 of "B", this is not counted as a story for height measurements.

If the average of "A" is greater than 1/2 of "B", this is counted as a story for height measurements.

Block: A tract of land bounded by streets or, in lieu of a street or streets, by public parks, cemeteries, railroad rights-of-way, bulkhead lines or shorelines of waterways or a corporate boundary line of the city.
Boardinghouse: A building other than a hotel or restaurant where meals are provided for compensation to four (4) or more persons, but not more than twelve (12), who are not members of the keeper's family.
Boat: Any vessel used for water travel. A boat mounted on a trailer shall be considered one vehicle.
Boathouse: A building designed to serve as a private or public boathouse for the storage of boats and for the servicing of boats, boat engines and equipment.
Buildable Area: The space remaining on a zoning lot after the minimum setback and open space requirements of this ordinance have been compiled with.

Building: Any structure with substantial walls and roof securely affixed to the land and entirely separated on all sides from any other structure by space or by walls in which there are no communicating doors, windows or openings; and which is designed or intended for the shelter, enclosure or protection of persons, animals or chattels. Any structure with interior areas not normally accessible for human use, such as gasholders, oil tanks, water tanks, grain elevators, coalbunkers, oil cracking towers and other similar structures are not considered as buildings.

Building, Completely Enclosed: A completely enclosed building is a building separated on all sides from the adjacent open space, or from other buildings or other structures, by a permanent roof and by exterior walls or party walls pierced only by windows and normal entrance or exit doors.
Building Height: The vertical distance measured from the sidewalk level or its equivalent established grade opposite the middle of the front of the building to the highest point of the roof in the case of a flat roof; to the deck line of a mansard roof; and to the mean height level between eaves and ridge of a gable, hip or gambrel roof; provided, that where buildings are set back from the street line, the height of the building may be measured from the average elevation of the finished lot grade at the front of the building.
Building Line: See setback line, building
Building Mounted System: An alternative energy system that is mounted on either the principal or accessory structure or both.
Building, Nonconforming: Any building which does not conform to the regulations of this ordinance prescribing the maximum floor area ratio, required yards, coverage, height and setbacks, minimum required spacing between buildings on a single lot, and minimum required usable open space for the district in which such building is located.
Building, Principal: A building in which is conducted the main use of the zoning lot on which it is situated.

Bulk: The term used to describe the size and mutual relationships of buildings and other structures, as to size; height; coverage; shape; location of exterior walls in relation to lot lines, to the centerline of streets, to other walls of the same building, and to other buildings or structures; and to all open spaces relating to the building or structure.
Bus Lot: Any lot or land area for the storage or layover of passenger buses or motor coaches.
Business: An occupation, employment or enterprise that occupies time, attention, labor, and materials, or wherein merchandise is exhibited or sold, or where services are offered.
Business Area: A zoning lot or portion of a zoning lot designed or used for purposes other than residential.
Business Establishment: A structure, or lot, used in whole or in part as a place of business, the ownership or management of which is separate and distinct from the ownership or management of any other place of business located on the same or other lot.
Caliper: The diameter of a tree trunk. For purposes of the Aurora Zoning Ordinance, the caliper of a tree drunk is measured 12” from ground level or grade.
Carport: A structure intended for shelter of an automotive vehicle on residential property, which is formed by a roof projecting from the wall of the principal structure and has at least one side permanently open to the weather, and which, for the purposes of the Zoning Ordinance, is an integral part of an architectural design for an existing or proposed principal building.
Carryout Or Delivery Food Establishments: A retail food establishment whose principal business is the sale of food or beverage primarily for consumption off the premises. The establishment may deliver food to the customer or the customer may pick the food up by using a drive-up window or by entering the establishment. Limited seating (up to 8 seating spaces) may be provided for customers to use while waiting for their orders. A carry out or delivery establishment that has more than limited seating shall be deemed a dine-in food and beverage establishment for zoning purposes.
Cartage, Local: Pickup and delivery of parcels, packages and freight by motor truck within and not exceeding twenty-five (25) miles of the city.
Cash-For-Gold Store: A business establishment whose primary business activity is the purchase of gold or other precious metals. A cash for gold store as defined herein does not include the purchase of gold or other precious metals when located in a facility whose principal business activity is the retail sales of jewelry.
Category Line: The line parallel to a major street and which serves as a boundary between different residential categories on a single parcel.
Category Yard: An open space, unoccupied and unobstructed from its lowest level upward, and which extends along a category line to a depth or width specified in the yard regulations of the residential (housing) standards of the B-B district.
Cellar: A "cellar" is a story having more than one-half of its height below the curb level or below the highest level of the adjoining ground. A cellar shall not be counted as a story for the purpose of height measurements.
Clinic, Medical Or Dental: A building containing an individual practitioner or an association or group of licensed physicians; surgeons, dentists, clinical psychologists, or similar professional health care practitioners, including assistants. The clinic may include apothecary, dental and medical laboratories, and/or X-ray facilities, but shall not include in-patient care or operating rooms for major surgery.
Clinic Or Medical Center: A "medical center" or "medical clinic" is an establishment where three (3) or more licensed physicians, surgeons or dentists engage in the practice of medicine or dentistry, operating on a group or individual basis with pooled facilities, which need not, but may, include coordinated laboratory, X-ray and allied departments, and the diagnosis and treatment of humans, a drug prescription counter (not a drugstore) for the dispensing of drugs and pharmaceutical products, orthopedic or optical devices to the patients of said physicians, surgeons and dentists; but not including any exterior display or advertising sign.
Club Or Lodge, Private: A structure or part thereof used by a not-for-profit association of persons who are bona fide members paying dues and where facilities are restricted to members and their guests. Food and alcoholic beverages may be served on its premises provided they are secondary and incidental to the principal use, and further providing that adequate dining room space and kitchen facilities are available and that the sale of alcoholic beverages is in compliance with applicable federal, state, and City of Aurora laws.
Commercial Vehicle: A vehicle that does not exceed the standards of a State of Illinois licensure classification of "B," (including, but not limited to, contractor's vans, mini-school buses, pick-up trucks, and smaller stake trucks).
Committee: The standing committee of the city council authorized by chapter 34 of this code to review matters referred from the planning and zoning commission.
Commission: The planning and zoning commission of the city.
Comprehensive Plan: The comprehensive plan adopted by the city council for the city or portion thereof pursuant to law.
Conditional Use: Any use of land or buildings, or both, described and permitted herein, subject to the provisions of the Use Regulations Section and the requirements of chapter 34.
Corner Lot: See lot, corner.
Corner Lot, Reversed: See lot, reversed corner.
Coverage, Lot: See lot coverage.
Curb Level: The level of the established curb in front of the building measured at the center of such front. Where a building faces on more than one (1) street, the "curb level" shall be the average of the levels of the curbs at the center of the front of each street. Where no curb elevation has been established, the mean level of the land immediately adjacent to the building shall be considered the "curb level."
Currency Exchange: An establishment, except a bank, a post office, trust company, savings bank, savings and loan association, credit union, industrial loan and thrift company, engaged in the business of cashing checks, drafts, money orders or traveler's checks, exchanging currency or transmitting money within the United States or overseas by any means for a fee. Check cashing shall not include stand-alone services located inside buildings so long as service incorporates no signage in the windows of the building visible from public view. For purposes of zoning, a currency exchange is considered an Alternative Financial Service.
Dog Run: An enclosed outdoor area intended for the exercising and/or containment of dogs.
Downtown Core: The downtown core shall be as described in the Downtown Core Section hereof.
Downtown Fringe: The downtown fringe shall be as described in the Downtown Fringe Section hereof.
Dish Antenna: A parabolic-shaped receiver and/or transmitter for entertainment and communication transmissions.
Drive-In Establishment: A business establishment, other than a drive-in or drive-through restaurant, so developed and used that its retail or service character is dependent, in whole or in part, on providing a driveway approach for motor vehicles to serve patrons while in the motor vehicle rather than within a building or structure.
Drive-Through Restaurant: An eating establishment that provides a driveway approach for the serving of food and beverages to customers in a motor vehicle and which may also provide an indoor seating area with a minimum of two (2) tables and four (4) chairs. Accessory outdoor seating may be provided. Carryout and delivery service must be an accessory use.
Dwelling: A building or portion thereof, but not including a house trailer or mobile home, designed or used exclusively for residential occupancy, including one-family dwelling units, two-family dwelling units and multiple-family dwelling units, but not including hotels, boardinghouses or lodging houses.
Dwelling, Group: Two (2) or more one-family, two-family or multiple-family dwellings, or boardinghouses or lodging houses, located on one (1) zoning lot, but not including tourist courts or motels.
Dwelling, Multiple-Family: A building or portion thereof designed or altered for occupancy by three (3) or more families living independently of each other.

Dwelling, One-Family: A building designed exclusively for use and occupancy by one (1) family, and entirely separated from any other dwelling by space.

Dwelling, Row (Party Wall): A row of two (2) to six (6) attached, one-family, party wall dwellings, not more than two (2) rooms in depth measured from the building line.

Dwelling, Two-Family: A building designed or altered to provide dwelling units for occupancy by two (2) families.
Dwelling Unit: One (1) or more rooms in a residential structure or apartment hotel, designed for occupancy by one (1) family, for living and sleeping purposes.
Educational Institution: Public, parochial, charitable or nonprofit junior college, college or university, other than trade or business schools, including instructional and recreational uses, with or without living quarters, dining rooms, restaurants, heating plants and other incidental facilities for students, teachers and employees.
Electric Vehicle: A vehicle that can be powered by an electric motor that draws electricity from a battery and is capable of being charged from an external source.
Electric Vehicle Charging Station: Equipment that connects to an electric vehicle to a source of electricity to recharge the battery of the electric vehicle.
Electronic Data Storage Center: An establishment classified in use category 3300, principally used for the storage and operation of computer systems, associated components and related equipment for the maintaining, storing, processing and routing of data and related activities. An Electronic Data Storage Center shall be at least 150,000 square feet with no more than five percent (5%) of the square footage being office use.
Essential Commercial Vehicle: A Commercial vehicle, excluding a tow truck or a panel truck, that is used for essential emergency twenty-four (24) hour service such as electrical, mechanical and plumbing contracting, and does not exceed a State of Illinois licensure classification of "D" when the vehicle is also the owner's principal means of transportation to and from their place of employment
Estate Sale: A type of garage sale where any person, or family member who finds themselves needing to sell or liquidate inherited personal property, or those who are in a position of having to liquidate their own property.
Facade: Any side of a building that faces a public street or a main parking area on the site.
Family: One (1) or more persons related by blood, marriage, or adoption, or a group of not more than three (3) persons (excluding servants) who need not be related by blood, marriage or adoption, living together and maintaining a common household, but not including sororities, fraternities or similar organizations.
Financial Institutions: Banks, currency exchanges, credit unions, finance companies, brokerage offices, pay day loan stores, and other similar establishments.
Flea Market: A retail facility that is divided into booths, which can be individually rented or leased to multiple vendors.
Flood-Crest Elevation: The elevation equal to the flood-crest level of record designated by the city engineer or another governmental official or body having jurisdiction applicable to the property.
Floodplain Area: That continuous area adjacent to a stream, stream bed or any stormwater retention area and its tributaries, with an elevation equal to or lower than the flood crest elevation, including also land subject to the risk of overflow which is less than ten (10) acres in area and has an elevation higher than flood-crest elevation and which is surrounded by land with an elevation equal to or lower than the flood-crest elevation, and land subject to the risk of overflow which is less than five (5) acres in area, has an elevation equal to or higher than flood-crest elevation and is bordered on three (3) sides by land with an elevation equal to or lower than the flood-crest elevation.
Floodplain Fringe Area: An area lying outside of a floodplain area and is immediately adjacent to and adjoining the floodplain area but not extending more than one hundred (100) feet therefrom.
Floor Area: The sum of horizontal areas of each floor measured from the exterior faces of the exterior walls, including utility rooms, but excluding cellars, basements, open porches, breezeways, garages and other spaces that are not used frequently or during extended periods for living, eating, or sleeping purposes, except that enclosed space intended for habitable rooms which are to be completed within a reasonable time may be considered in computing such floor areas.
Freestanding System: An alternative energy system that is not attached to another structure and is mounted to the ground.
Garage, Bus: Any building used or intended to be used for the storage of three (3) or more passenger motorbuses, or motor coaches used in public transportation, including school buses.
Garage, Bus Or Truck: A building which is used or intended to be used for the storage of motor trucks, truck trailers, tractors and commercial vehicles exceeding one and one-half (1 1/2) tons in capacity.
Garage, Private: A detached accessory structure or portion of the principal building, fully enclosed, and designed, arranged, used or intended to be used for the storage of automobiles of the occupants of the premises.
Garage, Public: A building other than a private garage, used for the care, incidental servicing and sale of automobile supplies, or where motor vehicles are parked or stored for remuneration, hired or sale within the structure, but not including trucks, tractors, truck trailers and commercial vehicles extending one and one-half (1 1/2) tons in capacity.
Grade: For the purposes of Section 4.4-9, grade is the average ground level at the front property line of a zoning lot.
Green Businesses: A business which adopts principles, policies, and practices to minimize negative impacts of the business on the global or local environment, community, society, or economy. These businesses strive to improve the quality of life for their customers, their employees, communities, and the environment.
Gross Leasable Area (Gla): All area within the outside walls of a building less stairs, elevators, flues, pipe shafts, vertical ducts and balconies.
Ground Floor Area: The sum of horizontal areas of the ground floor measured from the exterior faces of the exterior walls, including utility rooms, but excluding cellars, basements, open porches, breezeways, garages and other spaces that are not used frequently or during extended periods for living, eating, or sleeping purposes, except that enclosed space intended for habitable rooms which are to be completed within a reasonable time may be considered in computing such floor areas.
Guesthouse: Living quarters within a detached accessory building located on the same premises with the principal building for use by contemporary guests of the occupants of the premises. Such quarters shall have no kitchen facilities nor be rented or otherwise used as a separate dwelling.
Health Club: The meeting place of a group of persons organized for the purpose of improving the general condition of their health through exercise.
Helicopter: Any rotary wing aircraft which depends principally for its support and motion in the air upon the lift generated by one (1) or more power-driven rotors rotating on a substantially vertical axis. All helicopters using heliports/helistops shall comply with Federal Aviation Regulation (FAR) part 336.
Heliport: Any area of land, water or structural surface which is designed, used or intended to be used for the landing and takeoff of helicopters and any pertinent areas which are designed, used or intended to be used for a helicopter building or other facilities which have received a certificate of approval from the Division of Aeronautics, State of Illinois, Department of Transportation and a conditional use permit from the city to operate said heliport.
Helistop: An aeronautic facility used for periodic on and off loading of passengers and/or cargo as carried by helicopters with little or no ground support capability.
Home Occupation: A Home Occupation is defined as any use that may be conducted entirely within a dwelling and carried on by the inhabitants and up to one employee who is not a resident thereof and clearly incidental or secondary to the use of the dwelling for dwelling purposes and does not change the character thereof.
Hospital: An institution open to the public in which patients or injured persons are given medical or surgical care; or for the care of contagious diseases or incurable patients.
Householder: The occupant of a dwelling unit who is either the owner or lessee thereof.
Impact Area: The impact area consists of all zoning lots within 250 feet of a subject zoning lot and fronting on the public street that the infill lot fronts on.
Infill Lot: A zoning lot within an existing developed urban area where no more than four (4) zoning lots within the “impact area” have had new housing built upon them within the five (5) year period preceding the application date of a building permit for a zoning lot.
Individually Accessible Parking Space: A required parking space that is designed so that access to said space shall not be obstructed by use of another required parking space.
Junkyard: Open area where waste, scrap metal, paper, rags or similar materials are bought, sold, exchanged, stored, baled, packed, disassembled or handled, including auto and building wrecking yards, but excluding similar uses taking place entirely within a completely enclosed building.
Kennel, Commercial: Any lot or premises on which two (2) or more domestic animals, at least four (4) months of age, are kept, boarded for compensation, or kept or bred for sale.
Kiosk: An area within a structure, which is not wholly enclosed within its own unit is staffed by an attendant, and maybe used as a subordinate business to the primary business. A Kiosk is typically, but not required to be, delineated by a booth(s), counter(s) or table(s).
Laboratory, Commercial: Laboratory is a building, structure, or portion thereof which is devoted to experimental study such as testing and analyzing but not including the manufacturing, assembly, or packaging of products for sale either directly or indirectly.
Laboratory, Research: A building or group of buildings in which are located facilities for scientific research, investigation, testing and experimentation, but not primarily facilities for the manufacture or sale of products, except as incidental to the main purpose of the laboratory.
Land Use Division Line: The line, parallel to a major street and which serves as a boundary between commercial and residential developments on a single parcel.
Large Scale Development: A development or redevelopment project having gross leasable area of thirty thousand (30,000) square feet or greater, which is developed as a unit under unified or coordinated control of its planning and development.
Limited-Access Highway: A public highway or street, including a toll highway, designed for through traffic and to, from or over which owner of, or persons having interest in, abutting property or other persons having no right or easement, or only limited right or easement, of access, crossing, light, air or view by reason of the fact that said property abuts upon such highway or street, or for any other reason.
Line Of A Building (For Measuring Yards): A line parallel to the nearest lot line drawn through the point of a building or group of buildings nearest to such lot line, exclusive of such features specified as being permitted to extend into a yard.
Livestock: Animals, including but not limited to cattle, pigs, and poultry, raised for food or other products.
Loading And Unloading Space, Off-Street: An open hard-surfaced area of land other than a street or a public way, the principal use of which is for the standing, loading and unloading of motor trucks, tractors and trailers, to avoid undue interference with the public use of streets and alleys. Such space shall be not less than ten (10) feet in width, forty-five (45) feet in length and fourteen (14) feet in height, exclusive of access aisles and maneuvering space.
Lodging House Or Rooming House: A building with not more than five (5) guestrooms where lodging is provided for compensation pursuant to previous arrangement, but not open to the public or to overnight guests.
Lodging Room: A room rented as sleeping and living quarters, but without cooking facilities and with or without an individual bathroom. In a suite of rooms without cooking facilities, each room that provides sleeping accommodations shall be counted as one (1) lodging room for the purposes of this ordinance.
Lot: The word "lot" when used alone shall mean a "zoning lot" unless the context of this ordinance clearly indicates otherwise.
Lot, Corner: A parcel of land situated at the intersection of two (2) or more public and/or private streets or adjoining a curved street at the end of a block.


Lot Coverage: The maximum area of a zoning lot, expressed as a percentage of a lot’s total area, which can be covered. This includes, but is not limited to the principal building or buildings, accessory structures, hardscape (driveways, sidewalks, pavement or any area of concrete asphalt, permeable pavement, gravel) and in-ground pools. Free-standing hot tubs, vehicles, above-ground pools, and decks do not count toward lot coverage calculations.
Lot Depth: The horizontal distance between the front and rear lot lines measured in the mean direction of the side lot lines.

Lot, Frontage: The front of a lot shall be that boundary of a lot along a public street; for a corner lot, the owner may elect either street line as the front lot line.

Lot, Interior: A lot other than a corner, reversed corner, or through lot.

Lot Line, Exterior: A side lot line of a corner lot, said line being common with a public street property line. This definition includes front lot lines, exterior rear lot lines and exterior side lot lines.

Lot Line, Exterior Rear: A rear lot line on a zoning lot that abuts a right-of-way.
Lot Line, Exterior Side: A side lot line on a zoning lot that abuts a right-of-way.
Lot Line, Front: The front property line of a zoning lot. (see figure in definition of lot line, exterior)
Lot Line, Interior: A side lot line common with another lot and which does not abut a right-of-way. This definition includes interior side lot lines and interior rear lot lines. (see figure in definition of lot line, exterior)
Lot Line, Interior Rear: A rear lot line that does not abut a right-of-way.
Lot Line, Interior Side: A side lot line that does not abut right-of-way.
Lot Line, Rear: The "rear lot line" is the lot line or lot lines most parallel to and most remote from the front lot line. Lot lines other than front or rear lot lines are side lot lines. (see figure in definition of lot line, exterior)
Lot, Reversed Corner: A corner lot, the rear of which abuts upon the side of another lot, whether across an alley or not.

Lot, Through (Also referred To As A Double Frontage Lot): A lot having frontage on two (2) parallel or approximately parallel streets, and which is not a corner lot.

Lot, Width: The horizontal distance between the side lot lines measured at right angles to the lot depth at the established front building line.

Lot, Zoning: See zoning lot.
Manufacture: The making of anything by any agency or process.
Manufacturing Establishment: A lot and structure, the principal use of which is manufacturing, fabricating, processing, assembling, repairing, storing, cleaning, servicing, or testing of materials, goods or products.
Marquee Or Canopy: A roof like structure of a permanent nature, which projects from the wall of a building and overhangs the public way.
Motor Freight Terminal, Private: A building in which freight, brought to said building by motor truck, is assembled and sorted for routing in intrastate and interstate shipment by motor truck.
Motor Truck Repair Shop: A premise where motor trucks, tractors, truck trailers and industrial and commercial vehicles in excess of one and one-half (1 1/2) tons in capacity, or their bodies, are overhauled, rebuilt or repaired.
Nightclub: A place of entertainment open at night, for eating, drinking, dancing, etc., and usually having a floorshow.
Nonconforming Use: Any building, structure or land lawfully occupied by a use or lawfully established at the time of the adoption of this ordinance or amendments hereto, which does not conform after the adoption of this ordinance or amendment hereto with the use regulations of this ordinance.
Noxious Matter: Noxious matter is material that is capable of causing injury to living organisms by chemical reaction or is capable of causing detrimental effects upon the psychological, social or economic well being of individuals.
Nursery, Day: An institution providing care for three (3) or more children under the age of four (4) years for periods of more than four (4) hours, but not exceeding twenty-four (24) hours.
Nursery School: An institution providing day care service for children from four (4) to six (6) years of age.
Nursing Home Or Rest Home: A private home for the care of children or the aged or infirm, or a place of rest for those suffering bodily disorders, but not including facilities for the treatment of sickness or injuries or for surgical care, and which is licensed by the state and city if required by ordinance.
Octave Band: An "octave band" is a means of dividing the range of sound frequencies into octaves in order to classify sound according to pitch.
Operating Hours: Those hours that a business is functioning, open, and accessible to the general public for the purposes of conducting business.
Panel Truck Or Step Van: A motor vehicle designed, used or maintained primarily for transportation of property which does not exceed the standards of a State of Illinois licensure classification of "B" and which is at least eight and one-half (8 1/2) feet in height and eighteen (18) feet in length.
Parcel Delivery Station: A building in which commodities, sold at retail within the area and packaged by the retailer, are assembled and routed for delivery to retail customers located within the area.
Park, Community: An active or passive recreational facility for all age groups within driving distance of its location (typically a thirty-minute driving time), which has an emphasis on family and group programmed activities available on a year-around basis.
Park, Communitywide Special: An active or passive recreational facility for all age groups, which has an emphasis on one or more singular purpose activities outside the normal park setting.
Park, Conservation/Protection: A passive recreational facility for all age groups, which has an emphasis on preserving environmentally sensitive areas and natural resource features.
Park, Linear: A recreational facility for all age groups, which has an emphasis on providing non-motorized recreational trail opportunity and regional linkages with other the open space system.
Park, Neighborhood: A passive recreational facility with limited active capability for all age groups within walking distance of its location (typically one-half-mile radius), which has an emphasis on informal play activities rather than intensely scheduled activities
Parking Area, Private: An open, hard-surfaced area of land, other than a street or public way, designed, arranged and made available for the storage of private passenger automobiles only, of occupants of the building or buildings for which the parking area is developed and is accessory. All parking spaces must be individually accessible, and meet the requirements set forth in the Off-Street Parking and Loading/Design and Maintenance/Size section of this ordinance; if not the parking area shall be considered a Vehicle Storage Yard.
Parking Area, Public: An open, hard-surfaced area, other than a street or public way, intended to be used for the storage of passenger automobiles and commercial vehicles under one-and-one-half-ton capacity, and available to the public, whether for compensation, free or as an accommodation to clients or customers. All parking spaces must be individually accessible, and meet the requirements set forth in the Off-Street Parking and Loading/Design and Maintenance/Size section of this ordinance; if not the parking area shall be considered a Vehicle Storage Yard.
Parking Space, Automobile: Space within a public or private parking area of not less than one hundred and seventy (170) square feet (eight and one-half (8 1/2) feet by twenty (20) feet), exclusive of access drives or aisles, ramps, columns or office and work areas, for the storage of one (1) passenger automobile or commercial vehicle under a one-and-one-half-ton capacity.
Parsonage: The dwelling provided by a religious institution for the use of its minister or priest, in which no regular worship assemblies are held.
Particulate Matter: Particulate matter is material that is suspended in or discharged into the atmosphere in finely divided form as a liquid or solid at atmospheric pressure and temperature.
Passenger Vehicle: A motor vehicle which is self-propelled and designed for not more than twelve (12) persons.
Payday Loan Store: A business establishment that provides loans to individuals in exchange for one or more of the following forms of collateral, which are held for an agreed upon period of time prior to presentment for payment or deposit: personal checks, authorization to debit consumers' bank accounts, or interest in consumers' wages, including, but not limited to, wage assignments. For purposes of zoning a payday loan store is considered an Alternative Financial Service.
Performance Standards: Performance standards are criteria established to control noise, odor, glare and heat, exterior lighting, vibration, smoke, toxic or noxious matter, gases, particulate matter, fire and explosion hazards, wastes, and radiation hazards generated by or inherent in uses of buildings, structures, or land. Some of the terms most used in performance standards include but are not limited to the following:
Person(S) With Disabilities: For the purposes of this ordinance, persons with disabilities shall refer to those persons covered under the Americans with Disabilities Act.
Pilot Plant: A building or structure used for the testing of commercial or industrial processes and products and for the manufacturing of products for testing purposes.
Planned Development: A "planned development" is a tract of land which includes two (2) or more principal buildings and one (1) or more principal uses and which is developed as a unit under single ownership or under single, unified or coordinated control of its planning and development.
Police Incident: A documented service call chronicled by the City's Police Department Records Division, which call occurs with regard to a given property, concerning quality of life issues for the residents of said property and the surrounding neighborhood, and involving crimes against people, crimes against property, drug/alcohol violations, and related matters.
Poolrooms: As defined Chapter 8 AMUSEMENTS of the Aurora Code of Ordinances.
Porch: A roofed-over structure, projecting out from the wall or walls of a main structure and commonly open to the weather in part.
Property Maintenance Ordinance: Article IV of Chapter 12, et. seq. of the Code of Ordinances, City of Aurora, Illinois
Property User: The owner, lessee, licensee or other party occupying each lot or similarly defined property for the purpose of operating a business.
Public Street Elevation: See Street Elevation, Public
Public Utility: Any person, firm, corporation or municipal department, duly authorized to furnish under public regulation to the public, electricity, gas, steam, telephone, telegraph, transportation or water.
Railroad Right-Of-Way: A strip of land with tracks and auxiliary facilities for track operations, but not including depots, loading platforms, stations, train sheds, warehouses, car shops, car yards, locomotive shops or water towers.
Recreational Vehicle: A vehicle originally designed or modified for living quarters, human habitation, or recreation and not used as a commercial vehicle, including, but not limited to, the following:
Residential Area: A zoning lot or portion of a zoning lot designed or used exclusively for residential purposes.
Restaurant: An establishment where food and beverages can be purchased and eaten on the premises. Must provide an indoor seating area with a minimum of two (2) tables and four (4) chairs. Accessory outdoor seating may be provided. Carryout and delivery service may only be an accessory use. Establishments with drive-in or drive-through services are not permitted.
Restaurant, Hotel: An establishment where food and beverages can be purchased and eaten on the premises. Must provide an indoor seating area with a minimum of seventy five (75) seats, room service, and must have outside signage. Accessory outdoor seating may be provided.
Ringelmann Number: The "Ringelmann Number" is the number of the area on the Ringelmann Chart that coincides most nearly with the visual density of emission.
Roof Line: The part of the roof or parapet that covers the major area of the building.
Roof Types: The following roof types are illustrative examples of roofs types referenced to in the zoning ordinance.
Semi-Trucks: A truck that consist of a tractor and a trailer.
Setback: The minimum distance by which any building or structure must be separated from any existing or proposed lot lines.
Setback Line: A line designating the minimum distance a building or structure must be setback from any existing or proposed lot line.
Setback Line, Building: The line nearest the front of and across a lot establishing the minimum open space to be provided between the front line of a building or structure and the street right-of-way line.

Setback Line, Exterior: A line parallel to and at a distance from the exterior lot line that establishes the minimum distance between the exterior lot line and a structure on a lot.

Setback Line, Interior: A line parallel to and at a distance from the interior lot line that establishes the minimum distance between the interior lot line and a structure on a lot (see figure in definition of setback line, exterior).
Setback Line, Front: A line parallel to and at a distance from the front lot line that establishes the minimum distance between said lot line and a structure on a lot (see figure in definition of setback line, exterior).
Setback Line, Exterior Front: A line parallel to and at a distance from the front lot line that establishes the minimum distance between said lot line and a structure on a lot (see figure in definition of setback line, exterior).
Setback Line, Exterior Rear: A line parallel to and at a distance from the exterior rear lot line that establishes the minimum distance between said lot line and a structure on a lot (see figure in definition of setback line, exterior).
Setback Line, Exterior Side: A line parallel to and at a distance from the exterior rear lot line that establishes the minimum distance between said lot line and a structure on a lot (see figure in definition of setback line, exterior).
Setback Line, Interior Rear: A line parallel to and at a distance from the interior rear lot line that establishes the minimum distance between said lot line and a structure on a lot (see figure in definition of setback line, exterior).
Setback Line, Interior Side: A line parallel to and at a distance from an interior side lot line that establishes the minimum distance between said lot line and a structure on a lot. (see figure in definition of setback line, exterior).
Sign: A "sign" is a name, identification, description, display or illustration which is affixed to, or painted, or represented directly or indirectly upon a building, structure or piece of land, and which directs attention to an object, product, place, activity, person, institution, organization or business; however, a sign shall not include any display of official court or public office notices nor shall it include the flag, emblem or insignia of a nation, political unit, school or religious group. It shall not include a sign located completely within an enclosed building unless the context shall so indicate. Each display of a sign shall be considered to be a sign.
Sign, Advertising: An "advertising sign" is a sign that directs attention to a business, commodity, service or entertainment conducted, solid or offered elsewhere than upon the premises where such sign is located, or to which it is affixed.
Signs, Business: A "business sign" is a sign that directs attention to a business or profession conducted or to a commodity, service or entertainment sold or offered upon the premises where such sign is located, or to which it is affixed.
Sign, Flashing: A "flashing sign" is any illuminated sign on which the artificial light is not maintained stationary and/or constant in intensity and color at all times when such sign is in use. For the purpose of this ordinance, any revolving, illuminated sign shall be considered a flashing sign.
Sign, Gross Surface Area Of: The gross surface area of a sign shall be the entire area within a single continuous perimeter enclosing the extreme limits of such sign and in no case, passing through or between any adjacent elements of same; however, such perimeter shall not include any structural or framing elements lying outside the limits of such sign and not forming an integral part of the display.
Sign Ordinance: Chapter 41 of the Code of Ordinances, City of Aurora, Illinois.
Shed: A detached accessory structure, fully enclosed, which serves as a place of storage or shelter of household items incidental to the principal use of the main building or premises.
Slaughterhouse: An establishment where livestock are killed/slaughtered on premises. This use shall be considered as a heavy industrial use for the purpose of this ordinance.
Smoke Units: Smoke units represent the number obtained by multiplying the smoke density in Ringelmann Numbers by the time of emission in minutes. For the purpose of this calculation, a Ringelmann density reading is made at least once every minute during the period of observation; each reading is then multiplied by the time in minutes during which it is observed, and the various products are added together to give the total number of smoke units observed during the total period under observation.
Solar Energy System: A system that converts solar energy into electricity or heat through the use of photovoltaic panels or film, solar thermal panels, and associated control or conversion electronics.
Special Use: See Conditional Use.
Stable, Livery: Any building, other than a private stable, designed, arranged, used or intended to be used for the storage of horses and horse-drawn vehicles, or both.
Stockyard: An enclosed or open area, in which livestock, are housed. This use shall be considered heavy industrial use for the purpose of this ordinance.
Story: That portion of a building included between the surface of any floor and the surface of the floor next above it, or if there be no floor above it, then the space between the floor and the ceiling next above it. Any portion of a story exceeding fourteen (14) feet in height shall be considered as an additional story for each fourteen (14) feet or fraction thereof.

Story, Half: A half story is that portion of a building under a gable, hip or mansard roof, the wall plates of which, on at least two (2) opposite exterior walls, are not more than four and one-half (4 1/2) feet above the finished floor of such story. In the case of one-family dwellings, two-family dwellings, and multiple-family dwellings less than three (3) stories in height, a half story in a sloping roof shall not be counted as a story for the purpose of this ordinance. In the case of multiple-family dwellings, three (3) or more stories in height, a half story shall be counted as a story.
Street: A public way other than an alley, including the following types: arterial, major collector, minor collector, local, and limited-access highway.
Street, Arterial: A major or minor street of greater continuity intended to serve as a large volume traffic way within the City of Aurora and region beyond, and so designated on the Aurora Comprehensive Plan, Land Use and Circulation. Access to abutting property is subject to control of entrance, exits, and curb use. Parking may be restricted.
Street Elevation, Public: The portion of a structures architectural elevation facing a publicly dedicated street.
Street, Major Collector: A street distributing vehicular traffic between minor collectors and arterial streets, and so designated on the Aurora Comprehensive Plan, Land Use and Circulation. A major collector street will have moderate continuity and may serve intercommunity travel.
Street, Minor Collector: A street that collects and distributes local subdivision traffic to major collectors and arterial streets, and so designated in the Aurora Comprehensive Plan, Land Use and Circulation. Although these streets have a land access function, direct residential driveway access to these streets shall be minimized.
Street, Local: A street that its primary function is a land access to abutting land and which serves local traffic carrying it to collector streets.
Street, Limited-Access Highway: A traffic way including expressways and tollroads for through traffic, in respect to which owners or occupants of abutting property or land and other persons have no legal right of access to or from the same, except at such points only and in a manner as may be determined by the public authority having jurisdiction over such traffic way. A limited-access highway provides for expeditious movement of large volumes of traffic and is not intended to give land-access service.
Street Line: A line separating an abutting lot, piece or parcel from a street.
Street, Private: An undedicated street privately owned and maintained, or an easement of access benefiting a dominant tenant.
Street, Roadway: Roadway is the paved area intended for vehicular traffic, including curb and gutter, if any.
Structural Alterations: Any change other than incidental repairs which would prolong the life of the supporting members of a building or structure, such as bearing walls, columns, beams or girders.
Structure: Anything constructed or erected which requires location on the ground or is attached to something having location on the ground.
Tavern: A building where liquors are sold to be consumed on the premises.
Tearoom: A restaurant, which is located in conjunction with and on the same premises as a retail use.
Terrace, Open: An unroofed, paved area, or a raised flat mound of earth with sloping sides not more than four (4) feet in height above the average level of the adjoining ground and immediately adjacent to a house or structure.
Title Loan Store: A business establishment that provides loans to individuals in exchange for receiving titles to the borrower's motor vehicles as collateral. For purposes of zoning a title loan store is considered an Alternative Financial Service.
Tollway: Any route so designated by the Illinois Tollway Authority, including all land within the right-of-way.
Tourist Courts, Motor Lodges, Motels: An establishment consisting of a group of attached or detached living or sleeping accommodations with bathroom and closet space, located on a single zoning lot and designed for the use by transient automobile tourists. A motel furnishes customary hotel services such as maid service and laundering of linen, telephone and secretarial or desk service and the use and upkeep of furniture. In a motel less than twenty (20) percent of the living and sleeping accommodations are occupied or designed for occupancy by persons other than transient automobile tourists.
Tourist Home: A dwelling in which accommodations are provided or offered for transient guests.
Trailer: A vehicle without its own motive power that is designed to transport belongings or another vehicle, such as a boat, motorcycle or snowmobile for recreational or vacation use and that is eligible to be licensed or registered and insured for highway use. A vehicle trailer with another vehicle mounted on it shall be considered one vehicle.
Trailer Camp, House: Any premises occupied or designed to accommodate more than one (1) family living in an automobile house trailer or mobile home.
Trailer, House Or Mobile Home: A vehicle without motive power, designed to be drawn by a motor vehicle and to be used for human habitation or for carrying persons and property, including a trailer coach or house trailer.
Transitional Use: The use of a building or lot for permitted purposes in an area adjoining, adjacent or opposite to, but separated by a street or alley from an area of a lower classification.
Truck Parking Area Or Yard: Any land used or intended to be used for the storage or parking of trucks, tractors, truck trailers, and including commercial vehicles, while not loading or unloading, and which exceed one and one-half (1 1/2) tons' capacity.
Use: The purpose for which land or a building thereon is designed, arranged or intended, or for which it is occupied or maintained, let or leased.
Used Car And Boat Lot: A zoning lot on which used cars, trailer or trucks, or boats are displayed for sale or trade.
Wind Energy System: A system that converts wind energy into electricity through the use of wind turbines, a tower or post, mounting hardware, and associated control or conversion electronics.
Wholesale Establishment: Any building wherein the primary occupation is the sale of merchandise in gross for resale, and any such building wherein the primary occupation is the sale of merchandise to institutional, commercial and industrial consumers.
Yard: An open space on the same zoning lot with a principal building or group of buildings, which is unoccupied and unobstructed from any portion of the building from the ground upward, except as otherwise permitted in this ordinance, and which extends along a lot line and at right angles thereto to a depth or width extending to the specified line or lines of the principal building.

Yard, Corner: See yard, exterior side.
Yard, Exterior: A front, exterior side or exterior rear yard. (see figure in definition of yard)
Yard, Exterior Rear: Portions of a rear yard that are adjacent to a public street right-of-way. (see figure in definition of yard)
Yard, Exterior Side: The area lying between the exterior lot line and the nearest line or lines of the principal building, and extending from the front yard (or from the front lot line, if there is no front yard) to the rear yard. (see figure in definition of yard)
Yard, Front: A yard extending across the full width of the zoning lot and lying between the front line of the lot and the line or lines of the principal building. (see figure in definition of yard)
Yard, Interior: An interior side or interior rear yard. (see figure in definition of yard)
Yard, Interior Rear: A rear yard abutting any use except a public street right-of-way. (see figure in definition of yard)
Yard, Interior Side: The area lying between the interior lot line and the line or lines of the principal building, and extending from the front yard (or from the front lot line, if there is no front yard) to the rear yard. (see figure in definition of yard)
Yard, Rear: A yard extending across the full width of the zoning lot and lying between the rear line of the lot and the line or lines of the principal building.

Yard, River: The area lying between the setback line and the Fox River retaining wall, if such exists, or the mean watermark, as determined by the city engineer. The setback shall be measured horizontally. The purpose of such yard shall be to beautify the riverbank, to provide for pedestrian enjoyment, circulation and access among various businesses and activities. Within such yards pedestrian walkways, bicycle paths, pedestrian plazas and landscaping are permitted. Buildings, storage of materials or equipment, or vehicular parking, accessways or maneuvering areas shall not be permitted in the river yard.
Yard, Side: That part of the yard lying between the line or lines of the principal building and a side lot line, and extending from the front yard (or from the front lot line, if there is no front yard) to the rear yard. (see figure in definition of yard)
Zoning Administrator: The zoning administrator of the city.
Zoning Lot: A plot of ground, made up of one (1) or more parcels that is or may be occupied by a use, building or buildings including the open spaces required by this ordinance.
Zoning Maps: The map or maps incorporated into this ordinance as a part hereof.
ESTABLISHMENT OF ZONE DISTRICTS
In order to carry out the purposes and provisions of this ordinance, the city council hereby divides the city into the following use districts:
| ABBREVIATION | DISTRICT NAME |
| OPEN SPACE, PARK, RECREATION DISTRICT | |
| OS-1 | Conservation, Open Space, and Drainage District |
| OS-2 | Open Space and Recreation District |
| P | Park and Recreation District |
| RESIDENTIAL DISTRICTS | |
| E | One-Family Dwelling District |
| R-1 | One-Family Dwelling District |
| R-2 | One-Family Dwelling District |
| R-3 | One-Family Dwelling District |
| R-4 | Two-Family Dwelling District |
| R-4A | Two-Family Dwelling District |
| R-5 | Multiple-Family Dwelling District |
| R-5A | Midrise Multiple-Family Dwelling District |
| BUSINESS DISTRICTS | |
| B-1 | Business District Local Retail |
| B-2 | Business District General Retail |
| B-3 | Services and Wholesale District |
| B-B | Business-Boulevard District |
| MANUFACTURING DISTRICTS | |
| M-1 | Manufacturing District Limited |
| M-2 | Manufacturing District General |
| OTHER DISTRICTS | |
| ORI | Office, Research and Industrial |
| R-D | Research & Development District |
| DC | Downtown Core |
| F | Downtown Fringe |
| O | Office |
| PDD | Planned Development District |











A = Not permitted in front yard or required front setback.


| Maximum Quantity Allowed by Rated Capacity | Maximum Total System Height | |||||
| Zoning Lot Size (in sq ft) | less than/ equal to 5kW | less than/ equal to 20kW | less than/ equal to 40kW | 60 feet | 80 feet | 100 feet |
| 11,000 - 29,999 | 1 | none | none | ● | none | none |
| 30,000 - 129,999 | unlimited | unlimited | none | ● | ● | none |
| greater than/equal to 130,000 | unlimited | unlimited | unlimited | ● | ● | ● |







Shall be pursuant to district specific regulations, if any.

Shall be pursuant to district specific regulations, if any.
Shall be pursuant to district specific regulations, if any.
A newly-constructed single family detached home may not be located next to, across the street from, or cater-corner from another such newly-constructed or existing residential structure which has the same front elevation or the same configuration of building materials or the same colors facing the public street.
All outdoor lighting fixtures shall be designed, shielded, aimed, located and maintained to shield adjacent properties and not to produce glare onto adjacent properties or roadways.
