- DEVELOPMENT AND DESIGN STANDARDS
No accessory structure or use, as defined herein shall hereafter be built, moved or remodeled, established altered or enlarged unless such accessory structure or use is permitted by this ordinance. Accessory uses are permitted in any zoning district in connection with any principal use which is permitted within such district.
The intent of zoning and development standards in Boone County is to keep large farms in business, while protecting land values for existing residents and allowing appropriate development in established communities throughout the county. Using the techniques of traditional neighborhood development and cluster developments, the county intends to preserve and promote its agricultural heritage while planning for a sustainable future.
• Large farms, hobby farms and estate development should use the conventional/conservation design regulations.
• New subdivision housing and commercial development should utilize the traditional neighborhood and cluster design regulations.
• All new developments shall be reviewed through the process outlined in the subdivision ordinance.
Whenever any specific product is required for an improvement hereunder, the zoning administrator or county engineer may authorize installation of another product of equal standard and specification provided that the substitution is compatible with existing county improvements.
In any district on any corner lot, no fence, structure or planting shall be erected or maintained within 25 feet of the corner (the point of intersection of the right-of-way lines), which interferes with traffic visibility across the corner.
No structure shall be constructed upon or project over any easement.
A.
For the purpose of this section a structure shall include but not be limited to the following: any dwelling, garage, utility shed, carport, patio, deck, porch, retaining wall, antennas
B.
Exceptions may be made on an individual basis if a letter of consent is received from all affected utilities, including the county.
C.
Fences are not to be considered structures for the purpose of this section, but the Zoning Ordinance regulates their installation.
D.
Property owners who install fences, make major grading changes, or provide other improvements in an easement are advised that the utility companies having rights to use an easement have the prerogative to remove or disturb any improvements placed within an easement.
The conversion of any building into a dwelling or the conversion of any dwelling so as to accommodate an increased number dwelling units or families, shall be permitted only within a district in which a new building for similar occupancy would be permitted under this ordinance and only when resulting occupancy will comply with the requirements governing new construction in such district, with respect to minimum lot size, lot area per dwelling unit, percentage of lot coverage, dimensions of yards and other open spaces and off street parking.
Except as permitted below, recreation vehicles and mobile homes designed for permanent occupancy are permitted only in mobile home parks under the provisions of section 4.6.
A.
One recreational vehicle or mobile home shall be permitted on a lot in an agricultural district for the purpose of temporary, seasonal housing for migrant farm laborers employed by the occupants of a permanent home on the lot.
B.
A one-year mobile home or motor home permit may be issued by the zoning enforcement office for a mobile home or motor home to be used as a temporary shelter during active reconstruction or remodeling of a home on the lot on which the mobile home or motor home is to be placed. Projects requiring the mobile home or motor home to be utilized for more than one year from date of permit issuance shall ask for a one time one-year renewal by staff, further consideration shall file an appeal to the zoning board of appeals for an extension. (See section 2.9)
(Ord. No. 10-28, § 1, 5-19-2010)
An existing residence may be occupied while a new residence is being constructed on the lot on which the existing residence is located. However the existing residence shall be vacated and demolished within 30 days of completion of and issuance of an occupancy permit for the new residence.
(Ord. No. 10-28, § 1, 5-19-2010)
A.
Recreational vehicles (as defined in section 1.2.3) not designed for permanent residency, may be parked on lots in residential and agricultural districts provided they are kept behind the building line or in permitted accessory structures. Such vehicles may be parked in front yards for a period of time not to exceed 48 hours only for the purpose of maintenance, packing or unpacking of the vehicles.
B.
Trailers (as defined in section 1.2.3) not considered a recreational vehicle are subject to the same restrictions as recreational vehicles as outlined in section 5.1.8.A. with the exception that a trailer may be used by a building contractor as a temporary office or shelter incidental to construction on or development of the premises on which the trailer is located only during the time of said construction or development.
(Ord. No. 10-28, § 1, 5-19-2010)
Each accessory structure and use shall comply with the applicable use limitations in the zoning district in which it is located and, in addition:
A.
Agricultural exemption. Buildings and structures essential, incidental or customary to the pursuit of agriculture are exempt from the requirements of this section 5.2.
B.
Secondary construction. No accessory structure or use shall be constructed, occupied or established on any lot prior to the completion of the principal structure to which it is accessory.
C.
Easement protection. No accessory structure or use except fences shall be constructed, occupied or established on any public utility, drainage, or pipeline easement, except with the written permission of all utility companies and the county having rights to use the easement.
D.
Size. No detached accessory building or buildings shall occupy more than 50 percent of the area of a required yard.
E.
Height. No detached accessory building or structure shall exceed the height of the principle building or structure.
F.
Residential subdivision restrictions. An additional smaller accessory structure may be permitted, see section 5.2.4.B.4.
G.
Commercial/industrial restrictions. Detached accessory buildings shall not be located in a front or corner side yard
(Ord. No. 09-23, § 1, 5-20-2009; Ord. No. 21-02, § 1, 1-20-2021)
Except as otherwise provided by this ordinance, all accessory structures and uses shall observe the bulk regulations of the district in which they are located, provided that:
A.
Detached accessory structures, except fences, and walls:
1.
Minimum rear and side yard: 15 feet from any lot line, excluding the RC-2 district and the TND district.
2.
Maximum structure height: 20 feet.
B.
Additional bulk regulations:
1.
Swimming pools, hot tubs, and outdoor spas.
a.
No swimming pool, hot tubs, and outdoor spas may be located less than 15 feet from any property line.
b.
All swimming pools, hot tubs, and outdoor spas shall provide adequate enclosure. Said enclosure shall comply with appropriate building codes.
c.
Planting material shall not be used as a substitute for a required fence or wall.
d.
The maximum area of all unenclosed swimming pools, hot tubs, or outdoor spas located on a lot shall not exceed 800 square feet or five percent of the lot area, whichever is less.
2.
Fences and walls.
a.
Prohibited fences and walls.
1.
Fences, including walls, and planting material used in the nature of a fence, placed or maintained on any portion of any public right-of-way or in any required yard which, by the nature of the materials used for its construction, its design or location would impair public safety by interfering and obstructing the vision of persons using the streets, sidewalks or driveways on or adjacent to such a yard. No such fence may be located within the sight triangle, the sides of which are formed by the right-of-way lines of two intersecting streets, or a street and a driveway, or a street and an alley. The length of the sides of said triangle shall be 25 feet along the street right-of-way that intersect, and ten feet along the right-of-way and the driveway or an alley when a street intersects with an alley or a driveway.
2.
Fences or walls constructed in whole or in part of electrically charged wire, barbed wire, spikes, glass, protruding nails, or other sharp or pointed material of any kind.
3.
Chain link fences with barbed ends up.
4.
Snow fences, except for the exclusive control of wind blown snow between November 1 and March 31 and erected by state or local highway authorities.
5.
Fences constructed of less than 9-gauge wire.
6.
Exceptions to this section may be granted by petition to the zoning board of appeals.
b.
Fence and wall requirements.
1.
Height. Fences and walls shall not be erected in excess of six feet above ground level on any residential zoning lot or in excess of eight feet on any commercial or industrial zoning lot, unless otherwise specified.
2.
Location. Fences and walls shall be located entirely on the lot of the property owner constructing the fence or wall.
3.
Construction. The finished side of the fence or wall must face out from the property of property owner constructing the fence or wall.
4.
Drainage. No fence or wall shall be constructed or maintained in such a manner as to obstruct, inhibit, impair or otherwise alter overland surface drainage across any adjoining lot.
5.
Easements. Fences may be located on public utility or drainage easements, however the county and the public utility companies having rights to use said easement reserve the right to remove said fence to construct, repair or maintain utility facilities with no obligation to replace or restore said fence, unless so stated in the governing easement document. It shall be the obligation of the property owner to locate all utilities prior to construction of a fence.
6.
Additional regulations for front yard and corner side yard fences and walls in residential zoning districts:
i.
Materials and design. Permitted fences include picket, post and rail, split rail, chain-link and wrought iron. Fences used or designed to screen or conceal a front yard or corner side yard shall not be permitted.
ii.
Maximum height. Four feet.
c.
Exemptions. The provisions of this section shall not apply to the following:
1.
Fences constructed for the safety of children on park or school playgrounds.
2.
Planting material used in the nature of a fence, except as otherwise prohibited herein.
3.
Barbed wire or electric may be used on a lot in the agriculture districts when such lot is used for permitted agriculture purposes.
4.
Fences erected in connection with sporting facilities, e.g. baseball fields and tennis courts.
5.
Barbed wire when used as part of security fencing on lots within the industrial districts.
3.
Private antenna towers and satellite stations. This section is intended for the use of private individuals who are not providing commercial communication service to others. Except for the antennas described in section 5.2.2.B.3.d, antenna towers and satellite dishes shall comply with the following:
a.
Maximum height: 50 feet above grade.
b.
Minimum yards:
1.
Freestanding towers or antenna structures and satellite dishes that are unattached to the principal structure shall not be located closer to the lot line than the total height of the tower, satellite stations or antenna structure. All unattached, freestanding towers, satellite dishes or antenna structures shall be located in the rear yard and must be properly guyed entirely within the limits of the property.
2.
Towers, satellite dishes or antenna structures that are directly attached to the principal structure can be located in a side yard or rear yard.
c.
Screening required: Satellite dishes shall be screened from view from adjoining lots and adjoining public right-of-way by a solid fence, wall and/or landscaping.
d.
Exemptions: Satellite dishes 40 inches or less in diameter or diagonal dimension. Personal wireless communication facilities are exempt from the regulations of this section but subject to 55 ILCS 5/5-12001.1.
4.
Tool, garden storage sheds, gazebos, cabanas and other accessory structures, not otherwise specified in this section.
a.
Maximum area: Two hundred square feet.
b.
Maximum number: One each per lot.
5.
Accessory dwelling units. When permitted by this ordinance, accessory dwelling units shall comply with the following standards:
a.
Maximum area: The floor area of an accessory dwelling unit shall not exceed 800 square feet.
b.
Maximum number: One each per lot.
c.
Design features:
1.
Each unit shall have its own exterior entrance.
2.
Each unit located shall be located on the second floor of an accessory garage structure.
3.
Accessory dwelling units shall be located only on lots having access to an alley.
(Ord. No. 09-23, § 1, 5-20-2009; Ord. No. 11-45, § 1, 10-19-2011; Ord. No. 21-02, § 1, 1-20-2021); Ord. No. 21-02, § 1, 1-20-2021)
Editor's note— Ord. No. 11-45, § 1, adopted October 19, 2011, deleted § 5.2.2 and renumbered §§ 5.2.3 and 5.2.4 as §§ 5.2.2 and 5.2.3 respectively. Former § 5.2.2 pertained to permitted yard obstructions and derived from Ord. No. 08-20, adopted July 9, 2008.
Exceptions to yard setbacks. The minimum setback requirements of each zoning district establishes the minimum required yard for all uses, except those exempted by this section. The following exceptions by buildings and structures are permitted into the specified required yards:
Where "P" indicates accessory structure or use is a permitted yard obstruction in
the indicated yard as defined in this section 5.2.3.
Accessory structures not listed in this table shall be considered by the zoning administrator
if similar to a listed structure.
Accessory structures listed in this table shall conform with the bulk regulations
in section 5.2.3 unless otherwise specified in this table.
(Ord. No. 11-45, § 1, 10-19-2011; Ord. No. 21-02, § 1, 1-20-2021)
Editor's note— Formerly § 5.2.4. See editor's note for § 5.2.2.
In order to achieve the proximity and diversity necessary to make neighborhoods walkable, it is important to mix land uses and uses within buildings. Traditional neighborhood development should consist of the following: a range of residential uses, densities, dwelling and lot sizes, parks and open spaces within a five-minute walk of every residence, and a core area which may consist of: a central park or square serving as a neighborhood focal point; a collection of nonresidential uses providing basic daily shopping and dining needs for the neighborhood; a civic, religious, or social institution or use; or, any combination thereof, all within a five- to ten-minute walk of most residents in the neighborhood.
The base density (the maximum density allowed by theunderlying residential traditional neighborhood district) may be adjusted upward by density bonuses awarded for furthering certain public objectives, subject to the following:
A.
Conditions for calculating residential densities.
1.
Areas used for nonresidential purposes shall not be counted towards the calculation of overall density for the traditional neighborhood development.
2.
All dwelling units constructed in mixed-use buildings, that is, buildings having retail, food service and/or office uses on the street level and residential uses on the upper floors, may be permissible in addition to the number of dwelling units authorized under this section. However, the total number of dwelling units in a traditional neighborhood development shall not be increased by more than ten dwelling units or ten percent, whichever is greater.
B.
Residential density bonuses.
1.
Basic bonus. Traditional neighborhood development base residential density shall be five percent higher than the maximum residential density for conventional development in the underlying zoning district.
2.
Provision of affordable housing. A density increase is permitted where the traditional neighborhood development provides housing opportunities for low or moderate income households. For each affordable housing unit provided under this section, one additional dwelling unit shall be permitted, up to a maximum five percent increase in the number of dwelling units.
C.
Commercial density ratio. The commercial density of a traditional neighborhood development shall be a minimum of one 125 square feet of commercial floor area per residential dwelling unit. This shall include retail, food service, business and personal service, and office uses.
A variety of lot sizes and types should be provided to facilitate housing diversity and choice and meet the projected requirements of people with different housing needs.
A.
[Lot diversity.] To facilitate lot diversity and an urban structure that is pedestrian friendly, street and lot layouts should provide for perimeter blocks that are generally in the range of 200 to 400 feet deep by 400 to 800 feet long.
B.
[Single street plane.] A single street plane should be formed by designing or improving adjacent buildings and lots with uniform setbacks and evenly spaced buildings. Collectively the buildings on each side of the street should create a continuous alignment. This does not mean, however, that all projections or recesses from the front façade must be prohibited.
C.
Lot widths should be established similar to surrounding sites. Create a symmetrical street cross section and repetitive visual rhythm that reinforces the street as a public space and the perception of the street as a simple, unified public space.
D.
Front setback, mixed or nonresidential uses. Civic and commercial buildings have no minimum setback, but should be aligned with existing adjacent development where possible, or setback similar distances to buildings in the older parts of the county.
E.
Front setback, residential uses. For infill and where possible with new (contiguous) development, establish setbacks for new housing that respond to the existing setbacks on either side of, and across the street from new development. Setbacks should be measured from the curb line and should not differ more than five from adjacent setbacks.
F.
Side setbacks. Provision for zero-lot line single-family dwellings should be made, provided that a reciprocal access easement is recorded for both lots, and townhouses or other attached dwellings provided that all dwellings have pedestrian access to the rear yard through means other than the principal structure.
The use of a variety of architectural features and building materials is encouraged to give each building or group of buildings a distinct character and visual appearance.
A.
Guidelines for existing structures.
1.
Existing structures, if determined to be historic or architecturally significant, shall be protected from demolition or encroachment by incompatible structures or landscape development.
2.
The Secretary of the Interior's Standards for Rehabilitation of Historic Buildings shall be used as the criteria for renovating historic or architecturally significant structures. These national standards may be found at www.cr.nps.gov/hps/tps/standards_guidelines.
B.
Guidelines for new structures.
1.
Size, scale and mass.
a.
New structures within a TND shall be no more than 2½-stories for single-family residential, or 5-stories for commercial, multi-family residential, or mixed use buildings.
b.
New structures within a TND shall be similar in size, scale and mass to existing structures within the older part of the community.
2.
Architectural style.
a.
The architectural style of a building shall be continued in all of its major features on all sides visible from a public street.
b.
If new structures for retail or other commercial uses exceeding the individual footprint of 50,000 square feet are allowed, then the façades of such buildings shall be articulated to appear as multiple buildings
c.
New structures may be constructed in any architectural style. However, if such structures are built using elements of Victorian, Craftsman or Bungalow, Prairie School or colonial revival stylistic details, such elements shall be based upon an architectural inventory of the existing older part of Boone County.
d.
Stylistic details characteristic of other regions of the United States are discouraged.
3.
Entries and facades.
a.
The front facade of the principal building on any lot in a TND shall face onto a public street.
b.
The front facade shall not be oriented to face directly toward a parking lot.
c.
Porches, pent roofs, roof overhangs, hooded front doors or other strong architectural elements shall define the front entrance to all residences.
d.
For commercial buildings, a minimum of 30 percent of the front facade on the ground floor shall be transparent, consisting of window or door openings allowing views into and out of the interior.
C.
Guidelines for secondary dwelling units. See section 5.2.3.C.6.
D.
Guidelines for exterior colors. Exterior colors for structures and appurtenances, including fixtures and signs, shall be compatible and harmonious with those of existing buildings in the immediate area.
1.
Fluorescent, day glow and/or neon colors shall not be permitted. Where such colors constitute a component of a standardized corporate theme or identity, muted versions of such colors shall be used.
2.
Color combination schemes shall be limited to no more than three different colors for all structures and appurtenances on a property. Varying shades, tints, or intensities of a color shall count as a different color for this purpose.
3.
Color schemes shall be used consistently throughout the property, including on both the upper and lower portions of buildings, and on all façades of a building or structure.
E.
Guidelines for exterior signage.
1.
Number of signs. No more than two exterior signs for the same business shall be visible from any single vantage point on or off the subject property.
2.
Area of signage. No more than one square foot of signage shall be permitted for every 20 square feet of building façade area (not to include roof area) which faces, or fronts on, the right-of-way of a directly adjacent public street. The assignment of permitted sign area to individual businesses within the same building shall be at the discretion of the property owner.
F.
Guidelines for exterior lighting.
1.
Street lights shall be decorative and blend with the architectural style of the TND. Street lights shall provide adequate lighting while minimizing adverse impacts, such as glare and overhead sky glow, on adjacent properties.
2.
In commercial or civic areas and parking lots, decorative lamps a maximum of 16 feet in height shall be placed at regular intervals.
G.
Guidelines for open space. The aggregate amount of park and open space in a TND shall be no less than would have resulted from the application of the existing park and open space requirements of the county subdivision regulations.
H.
Guidelines for review of architectural guidelines. Prior to issuance of a building permit for any structure in a TND, the zoning administrator shall determine whether the proposed structure complies with the requirements of this section 5.3.4.
Overall composition and location of landscaped areas shall complement the scale of the development and its surroundings. In addition to the requirements of section 5.4, landscaping and tree preservation, TND developments shall satisfy the following guidelines:
A.
In general, larger, well-placed contiguous planting areas shall be preferred to smaller, disconnected areas.
B.
Where screening is required by this ordinance, it shall be a minimum three feet in height, unless otherwise specified.
C.
Required screening shall be at least 50 percent opaque throughout the year. Required screening shall be satisfied by one or some combination of: a decorative fence not less than 50 percent opaque behind a continuous landscaped area, a masonry wall, or a hedge or fraction thereof, shall be required.
D.
Trees should preferably be located between the sidewalk and the curb, within the landscaped area of a boulevard, or in tree wells installed in pavement or concrete. If placement of street trees within the right-of-way will interfere with utility lines, trees may be planted within the front yard setback adjacent to the sidewalk. Where street trees already exist, any gaps shall be filled.
E.
The corners of parking lots and all other areas not used for parking or vehicular circulation shall be landscaped with turf grass, native grasses or other perennial flowering plants, vines, shrubs or trees. Such spaces may include architectural features such as benches, kiosks or bicycle parking.
F.
Maintenance and replacement of landscape materials shall be the responsibility of the property owner. Landscape maintenance should incorporate environ-mentally sound management practices, including the use of water- and energy-efficient irrigation systems such as drip irrigation, and pruning primarily for plant health, replacing dead materials annually.
G.
Landscape materials that are used for screening shall be of a size that allows growth to the desired height and opacity within two years.
H.
Provision shall be made for ownership and maintenance of streets, squares, parks, open space, and other public spaces in a TND by dedication to an appropriate public agency or entity, such as the township, park district, or conservancy.
Site design should use Best Management Practices (BMPs) to minimize off-site stormwater runoff, increase on-site filtration, and minimize the discharge of pollutants to ground and surface water. Natural topography and existing land cover should be incorporated into stormwater management systems to the maximum extent practicable. Please refer to the Subdivision Code for a full list of BMPs and stormwater treatment requirements. New TND development and redevelopment shall meet the following requirements
A.
No untreated, direct stormwater discharges to wetlands or surface waters are allowed.
B.
Post development annual ground water recharge should approximate pre-development annual recharge conditions.
C.
Developers must remove 80 percent of the average annual load of total suspended solids from new developments. Erosion and sediment controls must be implemented to mitigate impacts during construction or other land disturbing activities.
D.
An approved list of specific stormwater Best Management Practices (BMPs) must be used for critical area discharges or discharges from areas with higher potential pollutant loads.
E.
Redevelopment stormwater management systems should improve existing conditions and meet standards to the extent possible.
F.
All treatment systems or BMPs must have operation and maintenance plans to ensure that systems function as designed.
The circulation system shall be used to organize and define the community, acting as functional and visual links between neighborhoods, the civic and commercial areas and open space. The circulation system shall be based on a defined network interconnected both internally and to existing development that provides adequate traffic capacity, provides connected pedestrian and bicycle routes (especially off-street bicycle or multi-use paths or bicycle lanes on the streets), controls through traffic, limits lot access to streets of lower traffic volumes, and promotes safe and efficient mobility through the community. In addition to the requirements of the subdivision regulations for traffic circulation, the following standards shall be followed:
A.
General street design. Traffic calming features such as curb extensions, traffic circles, and medians may be used to encourage slow traffic speeds.
B.
Pedestrian circulation. Convenient pedestrian circulation systems that minimize conflicts with automobiles shall be provided continuously throughout all development sites that consist of more than one building, and shall connect all buildings to public sidewalks. Where feasible, any existing pedestrian routes through the site shall be preserved and enhanced.
1.
Walkways in residential uses. Clear and well lighted walkways, a minimum of five feet in width, depending on projected pedestrian traffic, shall connect entrances into multiple-family dwellings to the adjacent public sidewalk and to any parking areas on the site.
2.
Walkways in civic, mixed and nonresidential uses. Clear and well lighted walkways shall connect building entrances to the adjacent public sidewalk and to any parking areas located on the site. Such walkways shall be a minimum of five feet in width, and shall be landscaped where feasible with trees, shrubs and other plant material, meeting the requirements of section 5.3.5.
3.
Transit access. Where transit service is available or planned, site plans shall provide pleasant and convenient access to transit stops. Where transit shelters are provided, they shall be placed in locations that promote security through natural surveillance and visibility, and shall be well lighted and weather-protected.
4.
Disabled accessibility. Sidewalks and pedestrian paths adjacent to and connecting civic and commercial uses shall be accessible to the physically disabled.
5.
Crosswalks. Intersections of pedestrian paths with streets shall be designed with clearly defined edges. Crosswalks shall be well lit and defined with contrasting paving materials or striping
C.
Bicycle circulation. Convenient bicycle circulation systems that minimize conflicts with automobiles and pedestrians shall be provided continuously throughout all development sites that include new or improved streets. Where feasible, any existing bicycle routes through the site shall be preserved and enhanced. Facilities for bicycle travel can consist of anything from off-street facilities (generally shared with pedestrians and other nonmotorized users) to separate, striped bicycle lanes on streets, to an unstriped curb lane wide enough for a car to pass a cyclist typically 14 feet, or for a car to pass a cyclist and a parked car.
D.
Motor vehicle circulation. Motor vehicle circulation shall be designed to minimize conflicts with pedestrian access and circulation and with surrounding residential uses.
1.
Existing street network. Site design should maintain the existing street network, where present, and restore any disrupted street grid where feasible.
2.
Service vehicles. Access for service vehicles shall be provided that does not conflict with pedestrian use. Access points for such vehicles should provide as direct a route as possible to service and loading dock areas, while avoiding movement through parking areas.
3.
Snow removal. Site design shall include areas for snow storage unless applicant provides an acceptable snow removal plan.
4.
Impervious surfaces. Reduction of impervious surfaces through the use of porous paving materials and techniques is strongly encouraged for areas that serve low-impact parking needs, such as remote parking lots, parking areas for periodic uses and parking in natural amenity areas.
5.
Parking requirements. Parking areas for shared or community use should be encouraged. Additionally
i.
One off-street parking space per bed and breakfast, inn, or hotel room shall be provided within 200 feet of the establishment.
ii.
One additional off-street parking space with unrestricted ingress and egress shall be provided for each secondary dwelling unit.
iii.
Individual having more than 50,000 square feet of floor area must provide adequate parking within reasonable walking distance of the establishment.
E.
Thoroughfare layout.
1.
Thoroughfare classification standards. Each thoroughfare within a TND shall be classified according to the following:
a.
Medium-volume commercial street. This thoroughfare is designed for a mixed-use center or neighborhood commercial center. The primary function is access to commercial or mixed-use buildings, but it is also part of the major thoroughfares network. On-street parking, whether diagonal or parallel, helps to slow traffic and facilitate pedestrian traffic. Additional parking is provided in lots to the side or rear of buildings. Alleys may be used for deliveries and alternate access.
b.
Medium-volume residential street. This thoroughfare is designed for primary access to individual residential properties, to connect thoroughfares of lower and higher function, and to access the major thoroughfare network. Design speed is 25 mph.
c.
Low-volume residential street. This thoroughfare is designed for primary access to individual residential properties as well as access to adjacent streets. Traffic volumes are relatively low, with a design speed of 20 mph.
d.
Residential access lane. This thoroughfare is designed for primary access to a limited number of residential properties. With minimal traffic volumes, traffic is completely subservient to the residential environment. Access lanes can be constructed as culs-de-sac, loop street, or short connecting lanes, and generally serve ten or fewer homes. Traffic volumes are extremely low, with a design speed of less than 20 mph.
e.
Public alley. These thoroughfares provide secondary access to residential properties where street frontages are narrow, where the street is designed with a narrow width to provide limited on-street parking, or where alley access development is desired to increase residential densities. Alleys may also be used to provide delivery access or alternate parking access to commercial properties. Traffic volumes are extremely low, with a design speed of less than 20 mph.
2.
Thoroughfares. Thoroughfares shall be designed to limit and slow through traffic by narrower roadways, shorter lengths and other geometric configurations. No lot shall be more than 1,000 feet from an intersection.
3.
Intersections. Intersections shall be at right angles whenever possible, but in no case less than 75 degrees. Low volume thoroughfares should be aligned to form three-way intersections creating an inherent right-of-way assignment (the through street receives precedence) which significantly reduces accidents without the use of traffic controls. A low volume thoroughfare that intersects with a higher order thoroughfare, such as a collector, should be aligned with another street to form a four-way intersection, which can easily be regulated by a stop sign or other traffic control device.
4.
Curb radii. The roadway edge at street intersections shall be rounded by a tangential arc with a maximum radius of 15 feet for local streets and 20 feet for intersections involving collector or arterial streets. The intersection of a local street and an access lane or alley shall be rounded by a tangential arc with a maximum radius of ten feet.
5.
Curb cuts. Access to individual residential lots shall be prohibited along arterial streets. Curb cuts shall be limited to intersections with other streets or access drives to parking areas for commercial, civic or multifamily uses.
6.
Clear sight distances. Clear sight distances shall be maintained at intersections, as specified in the following table, unless controlled by traffic signal devices:
7.
Street orientation. Thoroughfares and pedestrian access should enhance open spaces and prominent buildings and provide for the maximum number of lots with southern exposure. All thoroughfares shall terminate at other thoroughfares or at public land, except as specified below
a.
Access lanes that terminate in culs-de-sac may be permitted only when topography prevents the use of loop streets.
b.
Local streets may terminate in stub streets when such streets act as connections to future phases of the development.
c.
Local streets may terminate other than at other streets or public land when there is a connection to the pedestrian and bicycle path network at the terminus.
F.
[Table of street requirements.] The following table of street requirements for TND development supersedes the requirements of the subdivision regulations:
Public open space provides an orientation hierarchy and communal structure to a neighborhood. The series of specialized open spaces described herein are integral to the neighborhood environment. Open space is defined as all areas not covered by buildings or parking lots, streets, required setbacks, easements or golf courses. The following regulations are intended for areas not intended to be served by the Belvedere Park District.
A.
Every neighborhood needs places where people can meet.
B.
Open space shall be planned and improved, accessible and usable by persons living nearby. Improved shall mean clear of underbrush and debris, graded, landscaped, and may contain one or more of the following improvements: gazebos, benches, walls, fences, fountains, statues, memorials, ball fields, and/or play equipment. Walls and fences shall be made of stone, masonry, wrought iron, or wood and shall not exceed four feet in height, except that fences used in conjunction with ball fields may be of chain link constructions and may exceed four feet in height. Playground equipment, statues, memorials and fountains should be located towards the center of squares and parks.
C.
Except for greenways and parkways, required open space shall be located at or adjacent to the higher residential densities in the neighborhood. Yard sizes and layout will vary with housing types. Lots with small yards should be compensated by being located in close proximity to parks
D.
Parks shall have public street frontage on at least two sides
E.
Open space types/classifications. Except as noted herein, each of the various open space types described in this section may be considered as park land contributions required by the subdivision regulations. The open spaces in the TND fall into eight types that are defined as follows:
1.
Playground. Playgrounds provide sunny and shaded play areas for children as well as open shelter with benches for adults. Playgrounds may be built within Squares and Parks or may stand alone within a residential block. Playgrounds shall be fenced, securable and illuminated if not part of a Square or Park. The minimum size for a playground shall be 8,000 square feet; the maximum size for a playground shall be 15,000 square feet. There should be a playground within 1,000 feet of every residence. Playgrounds may be covered in sand, crushed stone or other surface approved by the county. Trees shall be planted along the perimeter of a playgound. Trees shall be spaced between 15 and 40 feet on center. Trees shall limb up to a minimum of 15 feet at maturity. Tree planting required along the perimeter of a playground is in addition to trees required to be planted in the adjacent public right-of-way.
2.
Close. A close is a front space for buildings interior to the block. It may be pedestrian or it may have a roadway loop around a green area within the roadway. Its minimum width must coincide with emergency vehicle turning standards. Trees shall be planted along the perimeter of a close. Trees shall be spaced between 15 and 40 feet on center. Trees shall limb up to a minimum of 15 feet at maturity. Tree planting required along the perimeter of a close is in addition to trees required to be planted in the adjacent public right-of-way.
3.
Square. Squares are green spaces which are inherently civic in nature. They are the setting for civic buildings and monuments, located either at their centers or edges. Formal tree planting maintains spatial definition of the square. Squares should be maintained to a higher standard than playgrounds and parks. Squares are areas for passive recreational use. Attached squares shall be bounded by streets on a minimum of three sides or 75 percent of their perimeter. Detached squares are entirely bounded by streets. The recommended minimum size of a Square shall be 20,000 square feet; the recommended maximum size shall be two acres. Squares may be entirely paved in crushed gravel, brick paver, or similar material, or partially paved. Areas not landscaped shall be landscaped. Squares shall have trees planted parallel to all rights-of-way with not less than two tree species a minimum of ten feet and maximum of 30 feet on center. Trees shall limb up to a minimum of 15 feet at maturity. Tree planting required along the perimeter of a close is in addition to trees required to be planted in the adjacent public right-of-way.
4.
Parkway. Parkways are open spaces designed to incorporate natural settings such as creeks and significant stands of trees within neighborhoods. Parkways are to be entirely bounded by streets or pedestrian rights-of-way within developed areas. Parkways differ from Parks and Squares in that their detailing is natural, i.e. informally planted, except along rights-of-way, and may contain irregular topography. Parkways may be used for certain active recreational uses such as walking, jogging, or bicycling. Trees shall be planted along all rights-of-way with not less than two tree species a minimum of ten feet and maximum of 30 feet on center. Interior areas shall remain natural and any additional plantings shall be informal in design. Tree planting required along the perimeter of a parkway is in addition to required tree planting in the adjacent public right-of-way. Parkways are encouraged but shall not be considered as park land contributions required in the subdivision regulations.
5.
Greenbelt. Greenbelts run along a creek or other unnamed waterways, or along the perimeter of a neighborhood, and serve to buffer a neighborhood from surrounding noncompatible uses such as a highway corridor or industrial district, or one neighborhood from another adjacent neighborhood. Generally, greenbelts are left in a natural state and are not for recreational purposes. Agricultural land may be used as a greenbelt. There is no tree planting requirement along the perimeter of greenbelts. Tree planting required in the public right-of-way along greenbelts shall be provided as required. Greenbelts are encouraged but shall not be considered as park land contributions required in the subdivision regulations.
6.
Parks. Parks may be designed for passive and/or active recreational use. Parks shall be bounded by public streets on a minimum of 50 percent of their perimeter. Parks are encouraged to be entirely bounded by streets. The minimum size shall be one acre; the maximum size shall be five acres. The maximum park size may exceed five acres if through design, the park creates a central open space which serves an entire neighborhood or group of neighborhoods, or incorporates physical features which are an asset to the community, e.g. lake or river frontage, high ground, significant stand of trees. Trees shall be planted along all rights-of-way with not less than two tree species a minimum of ten feet and maximum of 30 feet on center. Interior areas shall remain natural and any additional plantings shall be informal in design. Tree planting required along the perimeter of a park is in addition to tree planting required in the adjacent public right-of-way. Promenades and esplanades within a park may be formally planted with trees parallel to the walkway. Interior portions of the park are encouraged to be kept free of plantings. Areas for active use and any facilities which accompany such use shall have a tree planting design which integrates the structures into the park and defines the areas set aside for active recreation use from areas of passive use. Plantings in the interior portions of the park are encouraged to follow topographical lines. There shall be no area within a park of undergrowth or limbs lower than 12 feet from the ground.
7.
Green. Like the square, it is small, civic, and surrounded by buildings. Unlike the square, it is informally planted and may have an irregular topography. Greens are usually landscaped with trees at the edges and sunny lawns at the center. Greens should contain no structures other than benches, pavilions and memorials. Paths are optional. Tree planting required in the public right-of-way along a green shall be provided as required.
8.
Buffer. The buffer has the basic elements of a green with the added purpose of buffering the impact of traffic from a highway or boulevard. Buffers are encouraged but shall not be considered as park land contributions required in the subdivision regulations.
This article is established to create uniform landscape, screening and tree preservation standards for development of property in the county and review of plans therefore, in order to ensure that the county remains attractive, safe and comfortable. Landscaping required by this section shall be a condition to the issuance of a certificate of occupancy for any improvements built on a lot in the county. The landscape standards herein are established:
A.
To promote, protect and preserve the general health and safety of the people of the community and, as part of the general welfare, insure aesthetic compatibility among land uses within the community;
B.
To conserve soil and reduce soil erosion, reduce storm water run-off, to provide oxygen regeneration to enhance air quality, and to reduce the effects of urban heat islands;
C.
To minimize the harmful or nuisance effects resulting from noise, dust, debris, motor exhaust, headlight glare, artificial light intrusions, objectionable sights or activities, or similar incompatible impacts conducted or created by adjoining or nearby land use;
D.
To safeguard the environmental quality and aesthetic character of the community by limiting the removal and insuring replacement of trees upon private property within the county;
E.
To preserve, insofar as practical, existing vegetation and topographical features by limiting unnecessary clearing and modification of land, encouraging the retention of existing mature trees, requiring the replacement of indigenous trees with approved species; and,
F.
To encourage the energy efficient operation of land uses in the public interest.
A landscape plan prepared in accordance with the standards set forth in this article shall be required for any land development or use permit requiring a site plan review. Landscaping and screening required by this article shall be a condition to the issuance of a certificate of occupancy for any improvements built on a zoning lot in the county.
A.
Landscape plan required. A landscape plan shall be completed by an illinois licensed landscape architect. Requests for relief or revisions to these requirements of this section may be submitted to the zoning administrator for his consideration.
B.
Landscape plan elements. All final landscape plans shall include or have attached thereto to the following information:
1.
The name, address and phone number of the landscape architect or other person who prepared the plan and their signed stamp or seal; scale, north arrow, date of preparation, and identification of the plan as a final landscape plan.
2.
The location of existing and proposed improvements; including, but not limited to, buildings, with entry and exit points identified; all utilities, lighting, walls, and fences, parking areas (spaces delineated, including handicapped spaces, curbs); spot elevations and contours; existing and proposed berms; existing (four inch caliper and larger with drip line) and proposed plant material; paved surfaces; sign locations; public rights-of-way and easements, including street widths; refuse disposal areas; property lines; and, other exterior landscape amenities, such as bike paths, plazas, architectural paving, flag poles, foundations, benches, and bicycle racks.
3.
The planting schedule listing botanical names, common names, caliper or height, and quantity;
4.
The proposed treatment of all ground surfaces (pea gravel, ground covers, sod, seed and/or prairie).
5.
Other drawings and information as required; such as irrigation plan, if appropriate, grading and drainage plan, showing spot elevations and/or cross section, or methods to be used to protect plants and planted areas, e.g. curbs, ties, walls.
6.
Tree preservation and removal plan depicting existing trees on the property, indicating those to be removed with an "X" through them, tallying the number of trees to be preserved and the number to be removed.
7.
Provide elevations, cross sections, samples and/or photographs to indicate; texture of exposed surfaces, landscape material, scale, color of exposed surfaces, planting in relation to buildings, if requested by the zoning administrator.
8.
Provide technical information, samples, details, and/or photographs of materials to be used for light standards, benches, fences, walls, signage, safety lighting, and other site details.
C.
General design criteria.
1.
Selection of plant material.
a.
Planting materials used in conformance with the provisions of this article shall be:
1.
Of good quality and of a species normally grown in northern Illinois.
2.
Capable of withstanding the extremes of individual site microclimates.
3.
Selected for interest in its structure, texture, and color for its ultimate growth.
4.
Harmonious to the design, and of good appearance.
5.
In conformance with American Standard for nursery stock as approved by American National Standards Institute and issued as ANSI 2601.1986.
b.
Evergreens shall be incorporated into the landscape treatment of a site, particularly in those areas screening parking lots from dedicated public rights-of-way or property zoned for residential use.
c.
Minimum size. Minimum sizes for plant materials at time of installation for all landscape areas shall be as follows:
Ground cover shall be so planted and spaced that complete coverage can be obtained within two years after date of installation.
d.
Prohibited trees. The following trees shall not be used to satisfy the requirements of this article: Silver Maple (except new hybrids); Box Elder; Red Mulberry; Osage Orange; Poplar (all species); Black Locust; Weeping Willow (except in large, wet areas); Catalpa; Tree of Heaven; White Birch; Elm (except new hybrids; Russian Olive; Mountain Ash; Ash Trees (except those resistant to the Emerald Ash Borer); and, fruit trees.
3.
Installation of plant materials. Plant materials of all types and species shall be installed in accordance with the minimum technical specifications of the Illinois Landscape Contractors Association, including the provisions for guarantee and replacement.
4.
Maintenance of plant material. The owner of the premises shall be responsible for the maintenance, repair and replacement of all landscaping materials and barriers, including refuse disposal areas, walls, fences, and other amenities, as may be required by the provisions of this article. A means of irrigating plant material shall be provided. Installation of an automatic underground sprinkling system is recommended. If at any time a tree or shrub dies, the then current owner is responsible for replacing it in kind.
5.
Planting beds. Planting beds shall be mulched in their entirety with shredded bark or other similar organic material. Lava rock or large diameter (1½" diameter or larger) bark chips ("chunk bark") are not acceptable. Gravel and stone mulches are not permitted, unless specifically approved in writing by the county. Mulch beds at time of planting shall extend a minimum of two feet beyond the center of a shrub.
6.
Walls and fences.
a.
Plant materials shall be placed intermittently against long expanses of building walls, fences and other barriers to create a softening effect.
b.
All wood fences proposed to be used to satisfy the screening requirements of this article shall be of red cedar, redwood, cypress, or other approved decay resistant treated wood, at least six feet high, and of solid construction. Wood fences shall be not less than 75 percent opaque, with all supporting posts exposed to the lot interior. Stockade type fences are not permitted.
7.
Detention/retention basins and ponds. Detention/retention basins and ponds areas shall be planted. Such plantings shall include shade and ornamental trees, evergreens, shrubbery, hedges and/or other live planting materials. Plants must be able to tolerate wet conditions if planted within the basin. Native grasses and tall native vegetation shall be planted along the edges of detention/retention basins as a means to control the local geese population and to reduce erosion around the basin.
8.
Energy conservation.
a.
Deciduous trees, shrubs and vines should dominate the south and west sides of buildings and plaza areas to provide shade during the summer and limited shade during winter.
b.
Evergreens and other plant materials should be concentrated on the north side of buildings in a manner which dissipates the effect of winter winds.
9.
Berms. Earthen berms and existing topography shall, wherever practical, be incorporated into the landscape treatment of a site. Berms shall not exceed a maximum slope of four horizontal units to one vertical unit (4:1), except in parking islands, where the maximum slope shall not exceed two horizontal units to one vertical unit (2:1).
10.
Topography. Where natural, existing topographic patterns contribute to the beauty and utility of a development, they shall be preserved and developed. Modification of topography may be allowed where it contributes to the aesthetic quality of the site.
11.
Protection of plant material and/or people. In locations where plant materials may be susceptible to injury or cause personal injury, appropriate curbs, tree guards, or other devices shall be provided.
12.
Areas where plant material will not prosper. In areas where general planting will not prosper, other materials such as fences, walls and pavings of wood, brick, stone, and cobbles shall be used. Carefully selected plant material shall be combined with such materials where possible.
13.
Exterior landscape lighting. Lighting standards and fixtures when used to enhance the building design and the adjoining landscape shall be of a size and design compatible with the building and adjacent areas. Lighting shall be restrained in design, and excessive brightness and brilliant colors shall be avoided. Electrical service shall be underground.
14.
Amenities. In business, office and industrial districts seating areas, paved areas, plant enclosures, benches, waste receptacles, lights, and other amenities shall be provided.
15.
Service yard screening. Service yards, loading docks and other places that tend to be unsightly shall be screened from view. Screening shall be equally effective at all times of the year.
a.
Trash dumpsters and other waste receptacles or equipment shall be placed on a solid concrete surface and shall be screened on three sides with a solid wall composed of similar materials used on the primary structure on the lot and at least six feet in height, and a solid single or double access gate on the fourth side.
b.
All utility equipment (meters, transformers, etc.) shall be provided with appropriate planting screens.
c.
Garage doors and loading areas on nonresidential property shall be concealed from view (at grade) from adjoining residential zoned property.
d.
All outdoor storage facilities for raw materials and finished products within 500 feet of a residence district shall be effectively screened and enclosed by a solid wall or fence at least eight feet in height. If materials to be stored outdoors are in excess of eight feet in height, then landscape screening shall be provided in addition to the fence or wall installed along the outside perimeter of the fence or wall, equal or exceeding the height of the materials to be stored outdoors.
16.
Innovative landscaping. Innovative landscaping treatments are encouraged and shall be considered as a positive attribute in connection with any request for a variation from the requirements of this article.
17.
Intersection visibility. Landscaping must be designed and installed to minimize potential obstruction of critical sight lines. Landscape planting shall be so designed as to avoid obstruction of a motorist's vision at the intersection of parking aisles, driveways, or public or private streets and alleys. Unobstructed visibility between two and one-half feet and eight feet above the height of the pavement must be maintained at all intersections. To maintain this visibility, no berms, shrubs or other landscape material which will reach a mature height greater than two and one-half feet shall be permitted within a sight triangle. Trees are allowed in sight triangles provided the lowest branching begins not less than eight feet above the pavement.
18.
Edging. Edging is required on commercial, industrial, or institutional properties, and recommended on residential and other properties to separate grass areas from shrubs, ground cover and mulch and shall be a good quality steel, plastic, or weather resistant (redwood, cedar) or treated wood secured with stakes.
19.
Artificial plants. No artificial plants of any type shall be used to satisfy any requirements of this article.
20.
Ground cover. All drainage swales and slopes having a slope of three vertical units to one horizontal unit (3:1) or greater shall be sodded. All other ground areas not covered by buildings, parking, sidewalks or other impervious surfaces, or occupied by planting beds shall be graded smooth with a minimum of six inches of black dirt after compacting and removing stumps, rocks and other debris, and shall be seeded or sodded to prevent soil erosion and sedimentation of public drainage systems, creeks, streams, rivers and wetlands.
21.
Water conservation. Wherever possible landscape designs and plant material which is indigenous and or drought tolerant should be used to reduce the need for irrigation.
22.
Flower beds. Flower beds are encouraged and shall be planted in masses in acceptable areas to create color, texture and visual interest.
(Ord. No. 09-23, § 1, 5-20-2009)
In addition to the general design criteria prescribed in section 5.4.2.C., the following requirements shall also apply to landscaping in rights-of-way.
A.
Scope. Where a zoning lot abuts a dedicated public right-of-way, trees shall be provided in accordance with the provisions of this article.
B.
Street trees. Street trees shall be planted in all parkways having a width of five feet or more. The county shall have the discretion to require trees be planted outside of the right-of-way if the parkway is less than five feet wide or overhead or buried utilities may conflict with the growth of street trees. Street trees shall be planted not more than 40 feet apart whenever possible, and shall have a minimum trunk diameter of two and one-half inches measured six inches above ground level.
In addition to the general design criteria prescribed in section 5.4.2.C., the following requirements shall also apply to landscaping parking lots.
A.
Scope. All parking lots designed for 20 or more parking spaces shall be landscaped in accordance with the provisions of this article.
B.
Interior parking lot landscaping. To define circulation within a parking lot and to visually and physically break-up long rows of parking spaces, landscape islands are required to be provided within parking lot areas, as follows:
1.
Parking aisle landscape islands. A landscaped island shall be provided at the end of each parking row. The island shall be protected by a continuous concrete barrier curb and shall have a minimum width of seven feet, measured back-of-curb to back-of-curb, and shall have a depth equal to the adjoining parking space. Each parking aisle landscape island shall contain two deciduous shade trees.
2.
Parking space landscape islands. In addition to parking aisle landscape islands, one or more of the following alternatives shall be used to divide each row of parking having 20 spaces or more:
a.
Full parking space landscape island. One landscape island protected by a continuous concrete barrier curb and having a minimum width of seven feet, measured back-of-curb to back-of-curb, and a depth equal to the adjoining parking space, may be provided for each 20 parking spaces in the parking row. Said landscape islands shall be dispersed throughout the parking row. Each said landscape island shall contain one shade tree; or,
b.
Partial parking space landscape island. One landscape island positioned at the front corner of a parking space, protected by a continuous concrete barrier curb and having minimum dimensions of six and one-half feet square, measured back-of-curb to back-of-curb, may be provided for each ten parking spaces in the parking row. Said landscape islands shall be dispersed throughout the parking row and shall not be used in parking rows along the perimeter of a parking lot. Each said landscape island shall contain one shade tree; or,
c.
Continuous parking row landscape island. A continuous landscape island protected by a continuous concrete barrier curb and having a minimum depth of seven feet, measured back-of-curb to back-of-curb, may be provided between parking rows. Said landscape island shall not be used in parking rows along the perimeter of a parking lot. Each said landscape island shall contain one shade tree for each 20 parking spaces in the parking row.
3.
Additional landscaping standards. In addition to the shade trees required in this section, each landscape island required herein shall be landscaped with an appropriate number and selection of shrubs, flowers, groundcovers, sod and mulch. Shrubs planted in a parking lot landscape island shall not exceed a mature height of 30 inches above the adjoining pavement. No tree planted in a parking lot landscape island shall have branches maintained at a height less than six feet above the adjoining pavement.
C.
Parking lot perimeter landscaping.
1.
Front and corner side yards:
a.
Where a parking lot is located in or adjacent a front or corner side yard in a residential district, continuous landscaping shall be provided across not less than 100 percent of the parking lot frontage to a minimum height of three feet. Such landscaping shall consist of any combination of berms, shade and ornamental trees, evergreens, shrubbery, hedges, and/or other live planting material.
b.
Where a parking lot is located in or adjacent a front or corner side yard not in a residential district, continuous landscaping shall be provided across not less than 60 percent of the parking lot frontage to a minimum height of three feet. Such landscaping shall consist of any combination of berms, shade and ornamental trees, evergreens, shrubbery, hedges, and/or other live planting material. Plantings may be placed in clusters, containing at minimum seven evergreens and/or shrubs per cluster, spaced at intervals of approximately 35 feet along the frontage of the parking lot. However, when a continuous row of shrubs or hedges is chosen, the entire parking lot frontage shall be screened.
2.
Rear and side yards:
a.
Where a parking lot is located in a yard adjacent a residential zoning district, landscaping shall be provided as follows:
i.
Screening between the parking lot and the residential property line shall be a minimum of six feet in height.
ii.
Shade trees shall be provided at the equivalent of one for each 50 lineal feet, or fraction thereof, of parking lot frontage and shall not be planted more than 40 feet apart.
iii.
Other planting material, including ornamental trees, evergreens, shrubbery, hedges, and/or other live planting materials shall be provided in a continuous row covering 100 percent of the frontage of the parking lot adjacent the residential lot(s).
iv.
Except where occupied by planting beds, all side and rear yard perimeter landscaping area shall be sodded or seeded.
b.
Where a parking lot is located in a yard adjacent a nonresidential property; landscaping shall be provided across not less than 50 percent of that portion of the parking lot abutting the property line to a minimum height of three feet. Such landscaping shall consist of any combination of berms, shade and ornamental trees, evergreens, shrubbery, hedges, and/or other live planting materials. Plantings may be placed in clusters, containing not less than seven shrubs per cluster, spaced at intervals of approximately 35 feet along the property line.
In addition to the general design criteria prescribed in section 5.4.2.C., the following requirements shall also apply to foundation landscaping.
A.
[Perimeter landscaping.] All nonresidential and multiple family development shall provide perimeter landscaping as prescribed herein. Parking lots located on the perimeter of a lot shall comply with the requirements of section 5.4.4.C.
B.
Setback. A landscaping area not less than ten feet in width shall be located around the perimeter of all buildings, except where impractical, i.e. loading dock areas, entryways, etc.
C.
Coverage. Required foundation landscaping areas shall remain open and free of all paving except where pedestrian sidewalks to buildings and other similar paving are required.
D.
Landscaping materials. Foundation landscaping consist of shade and ornamental trees, evergreens, shrubbery, hedges, and/or other live planting materials. Particular attention shall be paid toward screening mechanical equipment, bicycle parking areas, and loading docks; softening large expanses of building walls; and accenting entrances and architectural features of the building(s).
In addition to the general design criteria prescribed in section 5.4.4.C., the following requirements shall also apply to perimeter landscaping.
A.
[Perimeter landscaping.] All nonresidential and multiple family development shall provide perimeter landscaping as prescribed.
B.
Non-residential property abutting nonresidential property. Where nonresidential abuts property in a business, office or industrial district, landscaping shall be provided as follows:
1.
Shade trees shall be provided at the equivalent of one for each 75 feet, or fraction thereof, of frontage along the abutting property line. Such trees shall be planted no more than 40 feet apart and may be clustered or spaced linearly as determined appropriate.
2.
Other landscaping materials, including berms, ornamental trees, evergreens, shrubbery, hedges, and/or other live planting materials shall be provided at appropriate locations along the abutting property line.
C.
Non-residential property abutting residential property. Where nonresidential property abuts property in a residential district, landscaping shall be provided as follows:
1.
A solid screen six feet in height, shall be provided along the entire length of the abutting property line. Such screen shall consist of a solid wood fence, berms, trees, evergreens, shrubbery, and/or other live planting materials, necessary to provide 100 percent coverage.
2.
Shade trees shall be provided at the equivalent of one for each 75 feet, or fraction thereof, of frontage along the abutting property line. Such trees shall not be planted more than 40 feet apart and may be clustered or spaced linearly as determined appropriate.
D.
Residential property abutting existing commercial property. Where any newly classified residential property abuts property in any business or industrial district, landscaping shall be provided as follows:
1.
Shade trees shall be provided at the equivalent of not less than one for each 75 feet, or fraction thereof, of frontage along the abutting property line. Such trees shall not be planted more than 40 feet apart and may be clustered or spaced linearly as appropriate.
2.
Other landscaping materials, including berms, if possible, ornamental trees, evergreens, shrubbery, hedges, and/or other live planting materials shall be provided at intermittent locations across 50 percent of the abutting property line. Shrubs shall be placed in clusters containing at least seven per cluster, spaced at intervals of approximately 35 feet along the abutting property line.
E.
Multiple-family residential property. Where multiple-family residential property abuts property in any zoning district, landscaping shall be provided as follows:
1.
Shade trees shall be provided at the equivalent of not less than one for each 75 feet, or fraction thereof, of frontage along the abutting property line. Such trees shall not be planted more than 40 feet apart and may be clustered or spaced linearly as appropriate.
2.
Other landscaping materials, including berms, if possible, ornamental trees, evergreens, shrubbery, hedges, and/or other live planting materials shall be provided at intermittent locations across 50 percent of the abutting property line. Shrubs shall be placed in clusters containing at least seven per cluster, spaced at intervals of approximately 35 feet along the abutting property line.
(Ord. No. 09-23, § 1, 5-20-2009)
The purpose of this section is to alleviate or prevent the congestion of the public streets and to promote the safety and welfare of the public by establishing minimum requirements for the off-street parking and loading and unloading of motor vehicles in accordance with the use to which property is put.
The off-street parking and loading provisions of this ordinance shall apply as follows:
A.
For all building and structures erected and all uses of land established after the effective date of this ordinance, accessory parking and loading facilities shall be provided as required by the regulations of the district in which building or uses are located. However, where a permit has been issued prior to the effective date of this ordinance, and provided that construction is begun within one year of such effective date, and diligently prosecuted to completion, parking and loading facilities as required herein need not be provided.
B.
When the intensity of use of any building, structure or premises shall be increased through the addition of dwelling units, gross floor area, seating capacity or other units of measurements specified herein for required parking or loading facilities, parking and loading facilities as required herein shall be provided for such increase in intensity of use.
C.
However, no building or structure lawfully erected or use lawfully established prior to the effective date of this ordinance shall be required to provide such additional parking or loading facilities unless and until the expansion equals 50 percent of the units of measurement existing upon the effective date of this ordinance, in which event parking or loading facilities as required herein shall be provided for the total increase.
D.
Whenever the existing use of a building or structure shall be changed to a new use, parking and loading facilities shall be provided as required for such new use. However, additional parking or loading facilities shall be required only in the amount by which the requirements for the new use would exceed those for the existing use if the latter were subject to the parking and loading provisions of this ordinance.
A.
Existing parking and loading facilities. Accessory off-street parking or loading facilities shall not hereafter be reduced below, or if already less than, shall not further be reduced below, the requirements of this title for a similar new building or use.
B.
Permissive parking and loading facilities. Nothing in this article shall be deemed to prevent the voluntary establishment of off-street parking or loading facilities to serve any existing use of land or buildings provided that all regulations herein governing the location, design, improvement and operation of such facilities are adhered to.
C.
Damage or destruction. For any conforming or legally nonconforming building for use which is in existence on the effective date of this title, which subsequent thereto is damaged or destroyed by fire, collapse, explosion or other cause, and which is reconstructed, re-established or repaired, off-street parking or loading facilities equivalent to any maintained at the time of such damage or destruction shall be restored or continued in operation, except that when such damage or destruction exceeds more than 50 percent of the value of the building or use, sufficient off-street parking or loading facilities shall be provided as required by this title for equivalent new use on construction.
D.
Computation of required off-street parking spaces and loading berths. When determination of the number of off-street parking spaces and loading berths required by this article results in a requirement of a fractional space, any fraction of one-half or less may be disregarded, while a fraction in excess of one-half shall be counted as one parking space or loading berth.
E.
Yards. Off-street parking spaces and loading berths and access thereto in industrial or commercial districts, or for nonresidential uses in residential districts may be located in any required yards, except no parking spaces or loading berths may be located within 20 feet of adjacent residential districts. Off-street parking spaces in any zoning district shall not be located within ten feet of a front or corner side lot line.
F.
Design and maintenance.
1.
Open and enclosed parking spaces and loading berths. Parking spaces and loading berths may be open to the sky or enclosed in a building.
2.
Screening and landscaping. All open loading areas and all parking areas providing space for five or more vehicles shall be effectively screened in accordance with the landscaping requirements in section 5.4 herein.
3.
Illumination. Lighting used to illuminate off-street parking and loading areas shall be directed away from all adjacent property and roadways and illumination levels shall not exceed one foot-candle at any property line.
4.
Repair and service. No motor vehicle repair work of any kind shall be permitted in conjunction with open off-street parking or loading facilities in any district.
5.
Curbing. The perimeter of all loading areas and parking areas for Industrial and Commercial uses providing loading berths for one or more vehicles or parking space for five or more vehicles shall provide vehicular barriers around the perimeter of the loading area and parking area. The vehicular barriers of such loading and parking areas shall be continuous concrete barrier curbing, minimum six inches high by 18 inches wide.
6.
Alternatives to curbing. Stormwater Best Management Practices (BMPs), including, but not limited to, grassed swales, organic filters, bio-retention, porous pavements and other emerging treatments may be used as an alternative to curbing for stormwater management purposes. BMPs should be designed and implemented by a licensed engineer and should provide a maintenance schedule to the county.
7.
Striping. The pavement surface of off-street parking and loading areas shall be striped to define each loading berth and parking space. Striping shall be a minimum of four inches in width for the length of each space and shall be painted white or yellow. All areas designated as fire lanes and/or no parking area shall be painted yellow.
8.
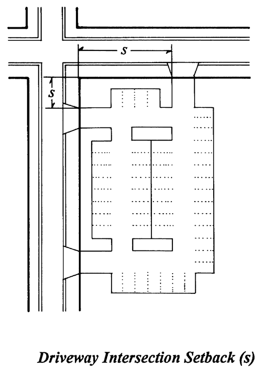
Circulation and access. Parking lot driveways on opposite sides of an arterial or collector street shall be either aligned or off-set by no less than 150 feet between the centerlines of each opposing driveway. Parking aisles throughout the parking lot shall align as closely as practical in order to create four-way intersections. Shared driveways and access easements between adjoining lots shall be encouraged to reduce the number of parking lot driveways along public streets.
G.
Submission of land plan. Any application for an improvement location permit, or certificate of occupancy where no permit is required, shall include therewith a land plan drawn to scale and fully dimensioned showing any parking or loading facilities, lighting, landscaping, signs and other improvements accessory thereto provided in compliance with this title.
H.
Construction and surfacing. Except as provided otherwise herein, the construction and design of off-street parking facilities shall be reviewed by the county engineer to determine:
1.
That every parking space, including access thereto, shall have an all-weather dust-free surface and shall be so graded and drained as to dispose of surface water accumulation by means of a positive storm water drainage system connected to a public drainage way.
2.
That parking areas shall be constructed in accordance with a minimum structural number of two and one-half and a minimum surface slope of one percent, provided that no parking area shall have less than two and one-half inches of bituminous surface course.
3.
That every driveway approach comply with the following standards. For the purpose of this section a driveway approach shall mean that portion of the driveway located in the right-of-way of a street.
a.
For residential uses; six inches of concrete with mesh on six inches of compacted crushed gravel or crushed stone.
b.
For nonresidential uses; six inches of concrete with mesh on eight inches of compacted crushed gravel or crushed stone.
c.
For sidewalks at driveway crossings; six inches of concrete with mesh on six inches of compacted crushed gravel or crushed stone.
4.
Alternative paving materials and "green" construction methods may be used if the county engineer determines that the minimum requirements for traffic weight, stormwater drainage, and maintenance will be met.
In addition to the standards and requirements in section 5.5.3, herein, off-street parking facilities shall comply with the following:
A.
Control of off-site off-street parking facilities. When required parking facilities are provided off-site, that is on land other than the zoning lot on which the building or use served by such off-site facilities is located, they shall be and remain in the same possession or ownership as the zoning lot occupied by the building or use to which the off-street parking facilities serve.
B.
Use of parking facilities. Off-street parking facilities accessory to residential uses and developed in any residential district in accordance with the requirements of this section shall be used solely for the parking of passenger automobiles owned by occupants of the dwellings to which such facilities are accessory or by guests of said occupants. Required parking facilities accessory to residential structures shall not be used for the storage of commercial vehicles or the parking of automobiles belonging to employees, owners, tenants, visitors, or customers of business, office or manufacturing establishments. For the purpose of this paragraph, storage shall mean a vehicle parked on the zoning lot for more than 48 hours in any 72-hour-period.
C.
Design and maintenance.
1.
Size. Except for parallel parking spaces and handicap parking spaces, required off-street parking space shall be 180 square feet in area and shall be no less than 20 feet long with a vertical clearance of seven feet, all exclusive of access drives, aisles, ramps, columns, office or work space, provided however that in measuring the length of a parking space the area safely occupied by a vehicle beyond a curb stop, whether paved or unpaved, shall be included. Each off-street parking space parallel to the parking aisle or driveway shall be no less than nine feet wide and 23 feet in length.
2.
Access and on-site circulation. Off-street parking areas shall be designed so as to require egress from the zoning lot to the street or alley by forward motion of the vehicle.
a.
Aisles. Each required off-street parking space shall open directly upon an aisle or driveway of such width and design as to provide safe and efficient means of vehicular access to such parking space. Aisle widths shall not be less than the following: 24 feet for any aisle designed for two-way traffic; 24 feet for each perpendicular parking space; 18 feet for each parking space on a 60° angle to the aisle; 13 feet for each parallel parking space or parking space on a 45° or 30° angle to the aisle; and 12 feet for each parallel parking space.
b.
Parking modules. A parking module shall mean a row of parking spaces, a parking aisle, and another row of parking spaces. Parking module widths shall not be less than the following:
Sixty-one feet for perpendicular parking spaces; 60 feet for parking spaces on a 60° angle to the aisle; 53 feet for parking spaces on a 45° angle from the aisle; 49 feet for parking spaces on a 30-degree angle from the aisle; and, 30 feet for parallel parking modules.
c.
Driveways. All off-street parking facilities shall be designed with appropriate means of vehicular access to a street or alley in a manner which will least interfere with traffic movements on the public streets:
1.
Intersection setbacks.
i.
Driveways located along an arterial road right-of-way shall not be located less than 60 feet from an intersecting right-of-way.
ii.
Driveways located along a collector road right-of-way shall not be located less than 50 feet from an intersecting right-of-way.
iii.
Driveways located along a local street or cul-de-sac right-of-way shall not be located less than 30 feet from an intersecting right-of-way.
2.
Street transition. All parking facility driveways which lead to or from a public right-of-way shall provide a transition space of not less than 30 feet in length from the public right-of-way to the nearest parking space, an intersecting driveway or parking aisle along said driveway to ensure traffic safety and circulation efficiency.
3.
Width. All driveways installed, altered, changed, replaced, or extended after the effective date of this title shall meet the following requirements: no driveway for vehicular ingress and egress shall exceed 28 feet in width at the right-of-way and 34 feet in width at the roadway in residential districts; no driveway for vehicular ingress and egress shall exceed 34 feet in width at the right-of-way and 44 feet in width at the roadway in commercial and industrial districts;
4.
Queuing spaces. Queuing spaces shall be provided accessory to drive-up service facilities in the number prescribed in the table of parking requirements. Queuing spaces shall be located so as to not interfere with parking or pedestrian and vehicular circulation on the zoning lot, or circulation on adjacent public streets. Queuing spaces shall measure ten feet in width and 18 feet in length. Queuing space shall not occupy the same spaces as parking or aisles thereto.
D.
Location. The location of off-street parking spaces accessory to the use served shall be prescribed hereinafter:
1.
For uses in residential districts. Parking spaces accessory to dwellings shall be located on the same zoning lot as the use served. Parking spaces accessory to uses other than dwellings in a residential district may be located on an adjacent lot or directly across a street or alley from the lot occupied by the use served, but in no case more than 300 feet from such use.
2.
For uses in commercial and industrial districts. All required parking spaces shall be not more than 500 feet from the use served, except for spaces accessory to dwelling units which shall be not more than 300 feet from the uses served.
E.
Handicapped parking. Any parking area for use by the general public shall provide parking spaces designated and located to accommodate the handicapped. Parking spaces reserved for the handicapped shall be located, designed, identified, and otherwise provided in accordance with the most restrictive requirements of the Illinois Accessibility Code, 71 Illinois Administrative Code, Part 400, and the Americans with Disabilities Act of 1990 (ADA) Guidelines, 28 C.F.R. Part 36, Appendix A as the same are from time to time amended.
1.
Size. Each parking space reserved for handicapped use shall be at least 16 feet in width by 20 feet in length.
2.
Enforcement. The designation of handicapped parking stalls shall constitute consent by the property owner to the enforcement by the county of the restriction of use of such spaces to handicapped motorists.
For the following uses, off-street parking spaces shall be provided as required hereinafter.
A.
Other uses. For uses not listed in section 5.5.5.F., table of parking requirements, parking spaces shall be provided on the same basis as required for the most similar listed use, or as determined by the zoning administrator.
B.
Parking basis. Parking spaces required for floor area shall be based on the maximum net floor area, herein defined, devoted to such use. Parking spaces required for employees shall be based on the maximum number of employees on duty, or residing, or both, on the premises at any one time.
C.
Floor area exemptions. When two or more nonresidential uses are located on the same zoning lot, only one exemption in terms of floor area, as set forth in section 5.5.5.F., table of parking requirements, may be permitted.
D.
Shared parking. When two or more nonresidential uses are located on the same zoning lot and their respective hours of operation do not overlap, the zoning enforcement officer may authorize a reduction in the total number of required parking spaces subject to the following conditions:
1.
Not more than 50 percent of the parking spaces required for a building or use may be supplied by the parking facilities required for any other building or use on the same zoning lot.
2.
The number of shared parking spaces for two or more distinguishable land uses shall be determined by the following procedure:
a.
Multiply the minimum parking required for each individual use, as set forth in section 5.5.5.F., table of parking requirements, by the appropriate percentage indicated in section 5.5.5.D.3., schedule of shared parking, for each of the six designated time periods therein.
b.
Sum the required parking for each of the six columns.
c.
The minimum parking requirement shall be the largest sum among the six columns resulting from the above calculations.
3.
Schedule of shared parking:
4.
If one or all of the land uses for which shared parking facilities is proposed do(es) not conform to one of the general land use classifications in the shared parking schedule as determined by the zoning administrator, then the applicant, owner or developer shall submit sufficient data to indicate that there is not substantial conflict in the principal hours of operation of the uses. The property owner(s) involved in the shared use of off-street parking facilities shall submit a legal agreement, approved by the Boone County State's Attorney, guaranteeing that the parking spaces shall be maintained so long as the uses requiring parking are in existence or unless the required parking spaces are provided elsewhere in accordance with this article. Such instrument shall be recorded by the property owner with the county recorder of deeds, and a copy filed with the zoning administrator.
E.
[Reserved.]
F.
Table of parking requirements. For the purpose of this ordinance the following parking requirements shall apply
(Ord. No. 10-28, § 1, 5-19-2010)
A.
Every building, structure, or lot used for business and industrial purposes shall be provided with off street loading spaces for the purpose of loading goods on and off vehicles.
B.
All loading berths shall be located on the same zoning lot as the use served. Where the use abuts a residential district, the loading berth shall be screened from the view of said residential district. No loading berth shall be located in a required setback yard.
C.
All loading berths shall have a dustless, all weather surface.
D.
All loading berths shall be at least 12 feet in width by at least 30 feet in length.
E.
The number of loading berths required shall be determined as follows:
The purpose of this section is to promote and protect the public health, welfare, and safety by regulating existing and proposed outdoor advertising signs and outdoor signs of all types. It is intended to protect property values, create a more attractive economic and business climate, enhance and protect the physical appearance of the community, and preserve the scenic and natural beauty of designated areas. It is further intended to reduce sign or advertising distraction and obstructions that may contribute to traffic accidents, reduce hazards that may be caused by signs overhanging or projecting over public rights-of-way, provide more open space, curb the deterioration of the natural environment, and enhance community development.
A.
Any sign placed on land or on a building for the purposes of identification or protection of the same or for advertising a use conducted thereon or therein shall be deemed to be accessory and incidental to such land, building, or use.
B.
All signs erected for directional purposes shall be confined to those that are of general public interest and such signs shall be limited to the giving of information.
C.
All other signs, referred to as off-site signs, are deemed by this section to constitute a separate use, and shall be regulated as such. Any widespread display of off-site signs is deemed to be inappropriate to the character and sound development of the county and it is intended by this section that the streets and highways in the county shall not be made available for such display, but that off-site signs shall be confined to locations in types of districts in which it is deemed not to be incongruous with other uses permitted therein.
D.
No sign requiring a permit shall hereafter be erected, re-erected, constructed, or altered until after a permit for the same has been issued by the zoning enforcing officer and the payment of a fee pursuant to a fee schedule adopted by the Boone County Board has been made.
E.
Illuminated signs shall be diffused or indirect and shall be arranged so as not to reflect direct rays of light into adjacent districts or into the public right-of-way. All illuminated signs shall have a horizontal cut-off, so that the light source is not visible directly from the side (90 degrees) or from any angle above the light source (91 to 180 degrees). Off-site signs of any type, home occupation signs, and signs of a temporary nature shall not be illuminated.
F.
Signs located on Federal Aid Primary roads and any highway that is part of the National System of Interstate and Defense Highways shall be subject to the rules and regulations of the Department of Transportation of the State of Illinois.
G.
Provisions of this section shall not apply to the following signs:
1.
Official traffic, fire and police signs, signals, and devices, and markings of the state, county, or city.
2.
Official signs and notices erected and maintained by public officers or agencies within their territorial jurisdiction for the purpose of carrying out an official duty or responsibility.
3.
Signs permitted by law within the highway right-of-way.
4.
Historic markers not greater than 12 square feet in area and conforming to setback requirements of this ordinance.
5.
Signs erected inside a building.
6.
Signs required by building codes.
7.
Manufactures' labels on farm structures and buildings standard to the assembly of the product.
8.
Signs located on private property not subject to view from other property or from public property.
H.
Prohibited signs. The following signs and advertising devices are prohibited:
1.
Any sign erected in or extending into the public right-of-way.
2.
Animated signs and any other sign or advertising device such as pinwheels, streamers, wind-operated devices, or fluttering signs.
3.
Any sign attached to a utility pole, fire hydrant, curb, public sidewalk, or other surface located on public property.
4.
Signs painted or posted directly upon the surface of any rocks, trees, or other natural features.
5.
Any sign erected in any location where, by reason of its location, will obstruct the view of any authorized traffic sign, signal, or other traffic control device. No sign shall be erected in the sight triangle, as defined in section 5.2, or any other location where it will obstruct the vision of the public right-of-way to a vehicle operator during ingress to or egress from public roadways.
6.
Off-site signs, except as provided in section 5.6.6 and section 5.6.8.
7.
Flashing signs, including, electronic message centers, but not including i) digital time and temperature signs involving only that information and no further or additional information of any advertising nature; and ii) electronic message centers erected on property zoned B-1, B-2, I-1 or I-2.
8.
Signs which contain characters, cartoons, statements, works, or pictures of an obscene, indecent, prurient, or immoral character.
I.
Directional signs for public places owned or operated by federal, state, or local governments or agencies; publicly or privately owned natural, historic, cultural, scientific, educational, or religious sites; and areas of natural scenic beauty or naturally suited for outdoor recreation, deemed to be of general public interest shall be permitted in all districts and shall not require a permit. Content of the wording of such signs shall be limited to the name of the attraction, direction, and distance. Each attraction may be permitted a maximum of eight signs, and there shall be no more than two signs for the same attraction on the same side of a given road. Such signs shall not exceed 12 square feet per side, for a total of 24 square feet, and shall not be subject to setback requirements, provided they are located no closer than 50 feet to an existing driveway or intersection.
J.
Sign maintenance: all signs, together with their supports, braces, guys, and anchors shall be kept in good repair and shall be painted or replaced when necessary to prevent corrosion or to correct peeling or excessive fading.
(Ord. No. 15-19, § 1, 7-15-2015)
All signs shall be mounted in one of the following ways:
A.
Attached to a building and not higher than the highest point of any building to which a sign is attached.
B.
Back-to-back so that the back of the sign will be screened from public view, or mounted so that the backs of all signs or sign structures showing to public view shall be painted and maintained in a color that blends with the surrounding environment.
C.
The gross sign area shall be the area within the single continuous line enclosing the extreme limits of such sign. It does not include any structural or framing elements. All faces of a sign that bear media elements shall be used in computing total gross area.
A.
Signs of six square feet or less in area shall not be subject to setbacks unless otherwise specified. Such signs shall not be located within the public right-of-way.
B.
Unless otherwise specified, signs greater than six square feet shall be set back a minimum of ten feet from the right-of-way and five feet from the side property lines. Signs greater than 100 square feet in area shall be set back a minimum of 20 feet from the right-of-way and five feet from the side property lines.
C.
In any district on any corner lot, no signs shall be erected or maintained so as to interfere with traffic visibility across a corner, or within the sight triangle as defined in section 5.2 of this ordinance.
A.
In residential districts, the following signs are exempt under specified conditions:
1.
Nameplates and identification signs not exceeding three square feet per side not to exceed a total of six square feet in area. Such signs shall not exceed one per dwelling unit. Content shall be limited to the occupant's name and address, and to the occupant's business when identifying an approved home occupation in accordance with section 4.3 of this ordinance.
2.
Bulletin boards and identification signs for churches, schools, service clubs and other permitted institutions and organizations shall be allowed a maximum of 32 square feet per side, not to exceed a total of 64 square feet.
3.
Signs for garage sales, or the sale, rental, or lease of land, lots, or houses, shall be permitted on the premises of the item being offered. Such a sign shall not exceed six square feet per side. one such sign is permitted for each road frontage on a given lot.
4.
Signs accessory to parking areas designating parking area entrances or exits are limited to one sign per entrance or exit and shall not exceed three square feet in area. Such signs shall not project beyond the property line nor shall they project more than seven feet above street level. A parking area may also include one sign limited to nine square feet which designates conditions for the use of the parking area.
B.
In residential districts (and in subdivision developments established prior to May 10, 1978, in the agriculture districts), a permit is required for the following signs:
1.
Signs accessory to roadside stands shall be permitted on lots with roadside stands for the purpose of identifying the stand and the products for sale. There shall not be more than one such sign on each side of the stand. No such sign shall project more than 15 feet above ground.
2.
Residential development or construction signs may be allowed a maximum of 32 square feet per side, not to exceed a total of 64 square feet and shall conform to all setback requirements. Such signs shall be removed when either development or construction is completed.
3.
Subdivision identification signs: each subdivision may be allowed a total of 96 square feet of identification signage. Each individual identification sign must be located on-site and shall not exceed 48 square feet per side. Such signs shall be located only at intersections with state, county, or township roads and shall meet all setback requirements of this ordinance.
C.
No freestanding sign in a residential district shall exceed 15 feet in height.
A.
In the agriculture districts, the following signs shall be exempt under specified conditions:
1.
Nameplates and identification signs not exceeding three square feet per side not to exceed a total of six square feet in area. Such signs shall not exceed one per dwelling unit. Content shall be limited to the occupant's name and address and to the occupant's business when identifying an approved home occupation in accordance with section 4.3 of this ordinance.
2.
One identification sign for farm businesses or seasonal tourist attraction not to exceed 32 square feet per side, not exceeding a total of 64 square feet in area, and subject to mounting and setback requirements of this ordinance.
3.
One additional sign, 16 square feet per side, not to exceed 32 square feet total, shall be allowed for each zoning lot in the agriculture districts for the purpose of advertising permitted business practices in these districts. Content of the sign shall be limited to the business, commodity, services, or other activities on the premises, including, but not limited to, the sale of livestock or seed, and the promotion of farm products, such as milk and beef.
4.
Bulletin boards and identification signs for churches, schools, service clubs and other permitted institutions and organizations shall be allowed one sign a maximum of 32 square feet per side, not to exceed a total of 64 square feet in area.
5.
Signs for garage sales or the sale, rental, or lease, of land, lots, or houses, shall be permitted on the premises of the item being offered. Such a sign shall not exceed six square feet per side and shall not be permitted in the public right-of-way. one such sign is permitted for each road frontage on a given lot.
6.
Properties with more than 500 feet of road frontage may be permitted one sign for the sale, rental, or lease of land not to exceed 16 square feet in area.
7.
Signs accessory to parking areas designating parking area entrances or exits are limited to one sign per entrance or exit and shall not exceed three square feet in area. Such signs shall not project beyond the property line nor shall they project more than seven feet above street level. An off-street parking area may also include one sign limited to nine square feet which designates conditions for the use of the parking area.
8.
Crop identification signs, not to exceed six square feet per sign, shall be permitted without limit to number. The duration of these signs shall be limited to the growing season. These signs cannot be located in the public right-of-way.
9.
Temporary off-site directional signs for auctions and horse shows may be posted for up to 24 hours, provided that the signs are posted on private property and not in the public right-of-way and do not exceed six square feet per side for a maximum total of 12 square feet in area.
B.
In the agriculture districts, a permit is required for the following signs:
1.
Signs accessory to roadside stands not to exceed 32 square feet in size shall be permitted on lots with roadside stands for the purpose of identifying the stand and the products for sale. There shall not be more than one such sign on each side of the stand. No such sign shall project more than 15 feet above the ground.
2.
Subdivision identification signs for A-1 zoned subdivisions established prior to May 10, 1978 as delineated in section 5.6.5 of this ordinance.
3.
Off-site directional signs shall be permitted in the agriculture districts for seasonal or agricultural businesses and tourist attractions located in these districts, such as farm markets, orchards, greenhouses, antique shops, and bed and breakfasts. These signs are allowed with the intent of providing directional information beyond streets and roads typically listed on road maps. The content of their wording shall be limited to the name of the business or attraction, direction, and distance. Each business or attraction may be permitted a maximum of eight signs, and there shall be no more than two signs for the same attraction on the same side of a given road. Each sign shall be a rectangular shape and shall not exceed 12 square feet per side, for a total of 24 square feet. These signs shall not be placed within the public right-of-way, and shall not be subject to setback requirements, provided they are located no closer than 50 feet to an existing driveway or intersection. Each off-site directional sign shall be located at least 150 feet from another off-site directional sign. Signs for seasonal businesses shall be removed during off-season periods.
4.
Special event signs. Special event signs shall be permitted off-site in the agricultural districts for seasonal businesses, agricultural businesses, and tourist attractions located in said districts subject to the following:
a.
A temporary sign permit shall be obtained from the Boone County Building Department.
b.
Such special event signage shall be allowed for a maximum period of 14 calendar days. Businesses shall be allowed up to three special event permits in any one calendar year and shall not exceed three signs per event.
c.
Such signs shall not exceed 12 square feet per side and be limited to content to business name, special event, dates of special event, and address of the business, and direction to the buisiness.
d.
Such signage shall comply with all applicable building code requirements and shall not be subject to setback requirements, provided they are located no closer than 50 feet to an existing driveway or intersection.
e.
Such signage shall be limited to one sign per zoning lot and shall be located at least 150 feet from another sign.
A.
On-site signs are permitted three per business or industrial establishment. Total square footage of all signs shall not exceed the following number of square feet multiplied by the lineal feet of lot frontage:
When calculating sign area, the one side of a lot that abuts on the street that defines the business or industry address shall be considered the entire length of its frontage.
1.
No individual sign shall exceed one-half of the total sign area allowed.
2.
No individual sign shall exceed 200 square feet per face, for a maximum of 400 square feet in total area.
B.
All signs of 100 square feet or less shall be set back at least ten feet from the front property line. All signs larger than 100 square feet shall be setback 20 feet from the front property line.
C.
No sign may be higher than the height of the principal building on the zoning lot.
D.
Portable signs shall be allowed in business and industrial districts, not to exceed one per business. Portable signs shall be included in the allowable number of signs in these districts. A permit for a portable sign shall be required for a period not to exceed 90 days, at which time the permit shall either be renewed or the portable sign shall be removed.
E.
Signs for the sale, rental, or lease of land, lots or buildings shall be exempt on the premises of the item being offered. Such a sign shall not exceed 32 square feet per side and shall not be permitted in the public right-of-way. one such sign is permitted for each road frontage on a given lot. Additional signs would require a permit.
F.
Electronic message center requirements.
1.
Electronic message centers may be established only if approved as a special use in accordance with section 2.7 of this ordinance.
2.
Electronic message centers shall be directed away from adjacent residential uses.
3.
The images and messages displayed on an electronic message center shall have a minimum dwell time of at least ten seconds and may not contain any movement, animation, audio, video, pyrotechnic or other special effects.
4.
The transition of change from one message to another shall occur in one second or less and involve no animation or special effects.
5.
Electronic message centers shall be equipped with a default mechanism that freezes the display in one position or presents a static or blank display if a malfunction occurs.
6.
Electronic message centers shall be equipped with a light detector/photocell that automatically adjusts the display's brightness according to natural ambient light conditions.
7.
The maximum brightness level of an electronic message center may not exceed 5,000 nits (candelas per square meter) during daylight hours or 250 nits between 30 minutes after sunset and 30 minutes before sunrise, as those times are determined by the National Weather Service (Actual Time). Brightness shall be measured from the brightest element of the sign's face. Before the issuance of a sign permit, the applicant shall provide written certification from the sign manufacturer that the light intensity has been factory pre-set so that it will not exceed 5,000 nits (candelas per square meter).
8.
Electronic message centers shall comply with all Illinois Department of Transportation rules and regulations and all Boone County ordinances, rules, and regulations. Applications for electronic message centers shall include appropriate documentation from an Illinois licensed designed professional of the sign structure's ability to accommodate the electronic message center's technology.
9.
Light trespass from any electronic message center may not cause the light level along any residential zoning district, as measured at a height of 60 inches above grade in a place at any angel of inclination, to exceed 0.1 foot candles above ambient light levels at the residential property line.
(Ord. No. 15-19, § 1, 7-15-2015)
A.
With the exception of section 5.6.6.A.9, section 5.6.6.B.3, section 5.6.6.B.4, section 5.6.9, off-site signs shall be allowed in only the business and industrial districts.
B.
Off-site signs shall conform to the setback and total square footage requirements of business and industrial districts.
C.
No off-site sign shall be erected or relocated to be read or viewed from the toll highway.
D.
No off-site sign, when viewed from a public park of ten or more acres, shall be erected or relocated within 300 feet of such park.
E.
No off-site sign shall be permitted within 75 feet of any residential district boundary.
F.
The maximum square footage of all off-site signs shall not exceed 32 square feet per side, not to exceed a maximum of 64 square feet.
G.
No off-site sign shall be higher than the height of the principal building on the lot on which it is located nor higher than 30 feet, whichever is less.
H.
The informational content of an off-site sign shall be placed on one device only, and not continued to two or more.
I.
The company placing its off-site sign must do so by permission obtained from the property owner, or by properly leasing or owning such property.
J.
[Reserved.]
K.
Only one off-site sign per zoning lot is permitted.
Special event signs shall be permitted off-site in the A-1 district for seasonal businesses, agricultural businesses, and tourist attractions located within said district. Said signs shall be subject to the following:
A.
A temporary sign permit shall be obtained from the Boone County Building Department.
B.
Such special event signage shall be allowed for a maximum period of 14 calendar days. Businesses shall be allowed up to three special event permits in any one calendar year and shall not exceed three signs per event.
C.
Such signs shall not exceed 12 square feet per side and be limited to content to business name, special event, dates of special event, and address of the business.
D.
Such signage shall comply with all applicable building code requirements and shall not be subject to setback requirements, provided they are located no closer than 50 feet to an existing driveway or intersection.
E.
Such signage shall be limited to one sign per zoning lot and shall be located at least 150 feet from another sign.
A.
Application for a sign permit shall be made in writing upon forms furnished by the zoning enforcement officer. Such application shall contain the location of the proposed sign as well as the name and address of the owner of the property and the sign contractor or erector. The zoning enforcement officer may require the filing of plans or other pertinent information such as the method of construction, the method of installation or support, etc.
B.
Before a permit is issued, the applicant shall submit a copy of the contract showing his right to maintain the device on the property for a length of time not to exceed that approved by the zoning enforcement officer.
Temporary signs not exceeding 32 square feet in area indicating an event of public interest such as a state or county fair, public or general election, horse show, or other signs of a civic, political or religious nature may be erected, hung, placed, or painted upon securing a permit at no cost from the zoning enforcement officer, provided that such signs shall not interfere with the full view of traffic in all directions. Such signs shall be placed no sooner than 60 days prior to the event and shall be removed not more than ten days after the event. Signs indicating a political or religious event shall not be subject to setback requirements.
Every permit for an advertising device shall require the removal of said device within 60 days upon notice by the zoning enforcement officer that the land upon which device is located has been platted or divided for residential use, or lies within 500 feet of a property line of any church, school, hospital, or similar public or semi-public property which is built. The zoning enforcement officer may order the removal of any sign that is not maintained in accordance with the provisions of this section.
A.
Any sign that is legally nonconforming as to type, location, zoning district, size, setback or for any other reason (except those signs that are related to and located on the same premises as a separate legal nonconforming use recognized under this ordinance) shall be brought into compliance with this sign ordinance when either a new face is to be introduced or a new structure is to be constructed.
B.
All illegal nonconforming signs shall be brought into compliance with the Boone County Zoning Ordinance.
A sign permit fee shall be charged in accordance with the fee schedule adopted by the Boone County Board.
- DEVELOPMENT AND DESIGN STANDARDS
No accessory structure or use, as defined herein shall hereafter be built, moved or remodeled, established altered or enlarged unless such accessory structure or use is permitted by this ordinance. Accessory uses are permitted in any zoning district in connection with any principal use which is permitted within such district.
The intent of zoning and development standards in Boone County is to keep large farms in business, while protecting land values for existing residents and allowing appropriate development in established communities throughout the county. Using the techniques of traditional neighborhood development and cluster developments, the county intends to preserve and promote its agricultural heritage while planning for a sustainable future.
• Large farms, hobby farms and estate development should use the conventional/conservation design regulations.
• New subdivision housing and commercial development should utilize the traditional neighborhood and cluster design regulations.
• All new developments shall be reviewed through the process outlined in the subdivision ordinance.
Whenever any specific product is required for an improvement hereunder, the zoning administrator or county engineer may authorize installation of another product of equal standard and specification provided that the substitution is compatible with existing county improvements.
In any district on any corner lot, no fence, structure or planting shall be erected or maintained within 25 feet of the corner (the point of intersection of the right-of-way lines), which interferes with traffic visibility across the corner.
No structure shall be constructed upon or project over any easement.
A.
For the purpose of this section a structure shall include but not be limited to the following: any dwelling, garage, utility shed, carport, patio, deck, porch, retaining wall, antennas
B.
Exceptions may be made on an individual basis if a letter of consent is received from all affected utilities, including the county.
C.
Fences are not to be considered structures for the purpose of this section, but the Zoning Ordinance regulates their installation.
D.
Property owners who install fences, make major grading changes, or provide other improvements in an easement are advised that the utility companies having rights to use an easement have the prerogative to remove or disturb any improvements placed within an easement.
The conversion of any building into a dwelling or the conversion of any dwelling so as to accommodate an increased number dwelling units or families, shall be permitted only within a district in which a new building for similar occupancy would be permitted under this ordinance and only when resulting occupancy will comply with the requirements governing new construction in such district, with respect to minimum lot size, lot area per dwelling unit, percentage of lot coverage, dimensions of yards and other open spaces and off street parking.
Except as permitted below, recreation vehicles and mobile homes designed for permanent occupancy are permitted only in mobile home parks under the provisions of section 4.6.
A.
One recreational vehicle or mobile home shall be permitted on a lot in an agricultural district for the purpose of temporary, seasonal housing for migrant farm laborers employed by the occupants of a permanent home on the lot.
B.
A one-year mobile home or motor home permit may be issued by the zoning enforcement office for a mobile home or motor home to be used as a temporary shelter during active reconstruction or remodeling of a home on the lot on which the mobile home or motor home is to be placed. Projects requiring the mobile home or motor home to be utilized for more than one year from date of permit issuance shall ask for a one time one-year renewal by staff, further consideration shall file an appeal to the zoning board of appeals for an extension. (See section 2.9)
(Ord. No. 10-28, § 1, 5-19-2010)
An existing residence may be occupied while a new residence is being constructed on the lot on which the existing residence is located. However the existing residence shall be vacated and demolished within 30 days of completion of and issuance of an occupancy permit for the new residence.
(Ord. No. 10-28, § 1, 5-19-2010)
A.
Recreational vehicles (as defined in section 1.2.3) not designed for permanent residency, may be parked on lots in residential and agricultural districts provided they are kept behind the building line or in permitted accessory structures. Such vehicles may be parked in front yards for a period of time not to exceed 48 hours only for the purpose of maintenance, packing or unpacking of the vehicles.
B.
Trailers (as defined in section 1.2.3) not considered a recreational vehicle are subject to the same restrictions as recreational vehicles as outlined in section 5.1.8.A. with the exception that a trailer may be used by a building contractor as a temporary office or shelter incidental to construction on or development of the premises on which the trailer is located only during the time of said construction or development.
(Ord. No. 10-28, § 1, 5-19-2010)
Each accessory structure and use shall comply with the applicable use limitations in the zoning district in which it is located and, in addition:
A.
Agricultural exemption. Buildings and structures essential, incidental or customary to the pursuit of agriculture are exempt from the requirements of this section 5.2.
B.
Secondary construction. No accessory structure or use shall be constructed, occupied or established on any lot prior to the completion of the principal structure to which it is accessory.
C.
Easement protection. No accessory structure or use except fences shall be constructed, occupied or established on any public utility, drainage, or pipeline easement, except with the written permission of all utility companies and the county having rights to use the easement.
D.
Size. No detached accessory building or buildings shall occupy more than 50 percent of the area of a required yard.
E.
Height. No detached accessory building or structure shall exceed the height of the principle building or structure.
F.
Residential subdivision restrictions. An additional smaller accessory structure may be permitted, see section 5.2.4.B.4.
G.
Commercial/industrial restrictions. Detached accessory buildings shall not be located in a front or corner side yard
(Ord. No. 09-23, § 1, 5-20-2009; Ord. No. 21-02, § 1, 1-20-2021)
Except as otherwise provided by this ordinance, all accessory structures and uses shall observe the bulk regulations of the district in which they are located, provided that:
A.
Detached accessory structures, except fences, and walls:
1.
Minimum rear and side yard: 15 feet from any lot line, excluding the RC-2 district and the TND district.
2.
Maximum structure height: 20 feet.
B.
Additional bulk regulations:
1.
Swimming pools, hot tubs, and outdoor spas.
a.
No swimming pool, hot tubs, and outdoor spas may be located less than 15 feet from any property line.
b.
All swimming pools, hot tubs, and outdoor spas shall provide adequate enclosure. Said enclosure shall comply with appropriate building codes.
c.
Planting material shall not be used as a substitute for a required fence or wall.
d.
The maximum area of all unenclosed swimming pools, hot tubs, or outdoor spas located on a lot shall not exceed 800 square feet or five percent of the lot area, whichever is less.
2.
Fences and walls.
a.
Prohibited fences and walls.
1.
Fences, including walls, and planting material used in the nature of a fence, placed or maintained on any portion of any public right-of-way or in any required yard which, by the nature of the materials used for its construction, its design or location would impair public safety by interfering and obstructing the vision of persons using the streets, sidewalks or driveways on or adjacent to such a yard. No such fence may be located within the sight triangle, the sides of which are formed by the right-of-way lines of two intersecting streets, or a street and a driveway, or a street and an alley. The length of the sides of said triangle shall be 25 feet along the street right-of-way that intersect, and ten feet along the right-of-way and the driveway or an alley when a street intersects with an alley or a driveway.
2.
Fences or walls constructed in whole or in part of electrically charged wire, barbed wire, spikes, glass, protruding nails, or other sharp or pointed material of any kind.
3.
Chain link fences with barbed ends up.
4.
Snow fences, except for the exclusive control of wind blown snow between November 1 and March 31 and erected by state or local highway authorities.
5.
Fences constructed of less than 9-gauge wire.
6.
Exceptions to this section may be granted by petition to the zoning board of appeals.
b.
Fence and wall requirements.
1.
Height. Fences and walls shall not be erected in excess of six feet above ground level on any residential zoning lot or in excess of eight feet on any commercial or industrial zoning lot, unless otherwise specified.
2.
Location. Fences and walls shall be located entirely on the lot of the property owner constructing the fence or wall.
3.
Construction. The finished side of the fence or wall must face out from the property of property owner constructing the fence or wall.
4.
Drainage. No fence or wall shall be constructed or maintained in such a manner as to obstruct, inhibit, impair or otherwise alter overland surface drainage across any adjoining lot.
5.
Easements. Fences may be located on public utility or drainage easements, however the county and the public utility companies having rights to use said easement reserve the right to remove said fence to construct, repair or maintain utility facilities with no obligation to replace or restore said fence, unless so stated in the governing easement document. It shall be the obligation of the property owner to locate all utilities prior to construction of a fence.
6.
Additional regulations for front yard and corner side yard fences and walls in residential zoning districts:
i.
Materials and design. Permitted fences include picket, post and rail, split rail, chain-link and wrought iron. Fences used or designed to screen or conceal a front yard or corner side yard shall not be permitted.
ii.
Maximum height. Four feet.
c.
Exemptions. The provisions of this section shall not apply to the following:
1.
Fences constructed for the safety of children on park or school playgrounds.
2.
Planting material used in the nature of a fence, except as otherwise prohibited herein.
3.
Barbed wire or electric may be used on a lot in the agriculture districts when such lot is used for permitted agriculture purposes.
4.
Fences erected in connection with sporting facilities, e.g. baseball fields and tennis courts.
5.
Barbed wire when used as part of security fencing on lots within the industrial districts.
3.
Private antenna towers and satellite stations. This section is intended for the use of private individuals who are not providing commercial communication service to others. Except for the antennas described in section 5.2.2.B.3.d, antenna towers and satellite dishes shall comply with the following:
a.
Maximum height: 50 feet above grade.
b.
Minimum yards:
1.
Freestanding towers or antenna structures and satellite dishes that are unattached to the principal structure shall not be located closer to the lot line than the total height of the tower, satellite stations or antenna structure. All unattached, freestanding towers, satellite dishes or antenna structures shall be located in the rear yard and must be properly guyed entirely within the limits of the property.
2.
Towers, satellite dishes or antenna structures that are directly attached to the principal structure can be located in a side yard or rear yard.
c.
Screening required: Satellite dishes shall be screened from view from adjoining lots and adjoining public right-of-way by a solid fence, wall and/or landscaping.
d.
Exemptions: Satellite dishes 40 inches or less in diameter or diagonal dimension. Personal wireless communication facilities are exempt from the regulations of this section but subject to 55 ILCS 5/5-12001.1.
4.
Tool, garden storage sheds, gazebos, cabanas and other accessory structures, not otherwise specified in this section.
a.
Maximum area: Two hundred square feet.
b.
Maximum number: One each per lot.
5.
Accessory dwelling units. When permitted by this ordinance, accessory dwelling units shall comply with the following standards:
a.
Maximum area: The floor area of an accessory dwelling unit shall not exceed 800 square feet.
b.
Maximum number: One each per lot.
c.
Design features:
1.
Each unit shall have its own exterior entrance.
2.
Each unit located shall be located on the second floor of an accessory garage structure.
3.
Accessory dwelling units shall be located only on lots having access to an alley.
(Ord. No. 09-23, § 1, 5-20-2009; Ord. No. 11-45, § 1, 10-19-2011; Ord. No. 21-02, § 1, 1-20-2021); Ord. No. 21-02, § 1, 1-20-2021)
Editor's note— Ord. No. 11-45, § 1, adopted October 19, 2011, deleted § 5.2.2 and renumbered §§ 5.2.3 and 5.2.4 as §§ 5.2.2 and 5.2.3 respectively. Former § 5.2.2 pertained to permitted yard obstructions and derived from Ord. No. 08-20, adopted July 9, 2008.
Exceptions to yard setbacks. The minimum setback requirements of each zoning district establishes the minimum required yard for all uses, except those exempted by this section. The following exceptions by buildings and structures are permitted into the specified required yards:
Where "P" indicates accessory structure or use is a permitted yard obstruction in
the indicated yard as defined in this section 5.2.3.
Accessory structures not listed in this table shall be considered by the zoning administrator
if similar to a listed structure.
Accessory structures listed in this table shall conform with the bulk regulations
in section 5.2.3 unless otherwise specified in this table.
(Ord. No. 11-45, § 1, 10-19-2011; Ord. No. 21-02, § 1, 1-20-2021)
Editor's note— Formerly § 5.2.4. See editor's note for § 5.2.2.
In order to achieve the proximity and diversity necessary to make neighborhoods walkable, it is important to mix land uses and uses within buildings. Traditional neighborhood development should consist of the following: a range of residential uses, densities, dwelling and lot sizes, parks and open spaces within a five-minute walk of every residence, and a core area which may consist of: a central park or square serving as a neighborhood focal point; a collection of nonresidential uses providing basic daily shopping and dining needs for the neighborhood; a civic, religious, or social institution or use; or, any combination thereof, all within a five- to ten-minute walk of most residents in the neighborhood.
The base density (the maximum density allowed by theunderlying residential traditional neighborhood district) may be adjusted upward by density bonuses awarded for furthering certain public objectives, subject to the following:
A.
Conditions for calculating residential densities.
1.
Areas used for nonresidential purposes shall not be counted towards the calculation of overall density for the traditional neighborhood development.
2.
All dwelling units constructed in mixed-use buildings, that is, buildings having retail, food service and/or office uses on the street level and residential uses on the upper floors, may be permissible in addition to the number of dwelling units authorized under this section. However, the total number of dwelling units in a traditional neighborhood development shall not be increased by more than ten dwelling units or ten percent, whichever is greater.
B.
Residential density bonuses.
1.
Basic bonus. Traditional neighborhood development base residential density shall be five percent higher than the maximum residential density for conventional development in the underlying zoning district.
2.
Provision of affordable housing. A density increase is permitted where the traditional neighborhood development provides housing opportunities for low or moderate income households. For each affordable housing unit provided under this section, one additional dwelling unit shall be permitted, up to a maximum five percent increase in the number of dwelling units.
C.
Commercial density ratio. The commercial density of a traditional neighborhood development shall be a minimum of one 125 square feet of commercial floor area per residential dwelling unit. This shall include retail, food service, business and personal service, and office uses.
A variety of lot sizes and types should be provided to facilitate housing diversity and choice and meet the projected requirements of people with different housing needs.
A.
[Lot diversity.] To facilitate lot diversity and an urban structure that is pedestrian friendly, street and lot layouts should provide for perimeter blocks that are generally in the range of 200 to 400 feet deep by 400 to 800 feet long.
B.
[Single street plane.] A single street plane should be formed by designing or improving adjacent buildings and lots with uniform setbacks and evenly spaced buildings. Collectively the buildings on each side of the street should create a continuous alignment. This does not mean, however, that all projections or recesses from the front façade must be prohibited.
C.
Lot widths should be established similar to surrounding sites. Create a symmetrical street cross section and repetitive visual rhythm that reinforces the street as a public space and the perception of the street as a simple, unified public space.
D.
Front setback, mixed or nonresidential uses. Civic and commercial buildings have no minimum setback, but should be aligned with existing adjacent development where possible, or setback similar distances to buildings in the older parts of the county.
E.
Front setback, residential uses. For infill and where possible with new (contiguous) development, establish setbacks for new housing that respond to the existing setbacks on either side of, and across the street from new development. Setbacks should be measured from the curb line and should not differ more than five from adjacent setbacks.
F.
Side setbacks. Provision for zero-lot line single-family dwellings should be made, provided that a reciprocal access easement is recorded for both lots, and townhouses or other attached dwellings provided that all dwellings have pedestrian access to the rear yard through means other than the principal structure.
The use of a variety of architectural features and building materials is encouraged to give each building or group of buildings a distinct character and visual appearance.
A.
Guidelines for existing structures.
1.
Existing structures, if determined to be historic or architecturally significant, shall be protected from demolition or encroachment by incompatible structures or landscape development.
2.
The Secretary of the Interior's Standards for Rehabilitation of Historic Buildings shall be used as the criteria for renovating historic or architecturally significant structures. These national standards may be found at www.cr.nps.gov/hps/tps/standards_guidelines.
B.
Guidelines for new structures.
1.
Size, scale and mass.
a.
New structures within a TND shall be no more than 2½-stories for single-family residential, or 5-stories for commercial, multi-family residential, or mixed use buildings.
b.
New structures within a TND shall be similar in size, scale and mass to existing structures within the older part of the community.
2.
Architectural style.
a.
The architectural style of a building shall be continued in all of its major features on all sides visible from a public street.
b.
If new structures for retail or other commercial uses exceeding the individual footprint of 50,000 square feet are allowed, then the façades of such buildings shall be articulated to appear as multiple buildings
c.
New structures may be constructed in any architectural style. However, if such structures are built using elements of Victorian, Craftsman or Bungalow, Prairie School or colonial revival stylistic details, such elements shall be based upon an architectural inventory of the existing older part of Boone County.
d.
Stylistic details characteristic of other regions of the United States are discouraged.
3.
Entries and facades.
a.
The front facade of the principal building on any lot in a TND shall face onto a public street.
b.
The front facade shall not be oriented to face directly toward a parking lot.
c.
Porches, pent roofs, roof overhangs, hooded front doors or other strong architectural elements shall define the front entrance to all residences.
d.
For commercial buildings, a minimum of 30 percent of the front facade on the ground floor shall be transparent, consisting of window or door openings allowing views into and out of the interior.
C.
Guidelines for secondary dwelling units. See section 5.2.3.C.6.
D.
Guidelines for exterior colors. Exterior colors for structures and appurtenances, including fixtures and signs, shall be compatible and harmonious with those of existing buildings in the immediate area.
1.
Fluorescent, day glow and/or neon colors shall not be permitted. Where such colors constitute a component of a standardized corporate theme or identity, muted versions of such colors shall be used.
2.
Color combination schemes shall be limited to no more than three different colors for all structures and appurtenances on a property. Varying shades, tints, or intensities of a color shall count as a different color for this purpose.
3.
Color schemes shall be used consistently throughout the property, including on both the upper and lower portions of buildings, and on all façades of a building or structure.
E.
Guidelines for exterior signage.
1.
Number of signs. No more than two exterior signs for the same business shall be visible from any single vantage point on or off the subject property.
2.
Area of signage. No more than one square foot of signage shall be permitted for every 20 square feet of building façade area (not to include roof area) which faces, or fronts on, the right-of-way of a directly adjacent public street. The assignment of permitted sign area to individual businesses within the same building shall be at the discretion of the property owner.
F.
Guidelines for exterior lighting.
1.
Street lights shall be decorative and blend with the architectural style of the TND. Street lights shall provide adequate lighting while minimizing adverse impacts, such as glare and overhead sky glow, on adjacent properties.
2.
In commercial or civic areas and parking lots, decorative lamps a maximum of 16 feet in height shall be placed at regular intervals.
G.
Guidelines for open space. The aggregate amount of park and open space in a TND shall be no less than would have resulted from the application of the existing park and open space requirements of the county subdivision regulations.
H.
Guidelines for review of architectural guidelines. Prior to issuance of a building permit for any structure in a TND, the zoning administrator shall determine whether the proposed structure complies with the requirements of this section 5.3.4.
Overall composition and location of landscaped areas shall complement the scale of the development and its surroundings. In addition to the requirements of section 5.4, landscaping and tree preservation, TND developments shall satisfy the following guidelines:
A.
In general, larger, well-placed contiguous planting areas shall be preferred to smaller, disconnected areas.
B.
Where screening is required by this ordinance, it shall be a minimum three feet in height, unless otherwise specified.
C.
Required screening shall be at least 50 percent opaque throughout the year. Required screening shall be satisfied by one or some combination of: a decorative fence not less than 50 percent opaque behind a continuous landscaped area, a masonry wall, or a hedge or fraction thereof, shall be required.
D.
Trees should preferably be located between the sidewalk and the curb, within the landscaped area of a boulevard, or in tree wells installed in pavement or concrete. If placement of street trees within the right-of-way will interfere with utility lines, trees may be planted within the front yard setback adjacent to the sidewalk. Where street trees already exist, any gaps shall be filled.
E.
The corners of parking lots and all other areas not used for parking or vehicular circulation shall be landscaped with turf grass, native grasses or other perennial flowering plants, vines, shrubs or trees. Such spaces may include architectural features such as benches, kiosks or bicycle parking.
F.
Maintenance and replacement of landscape materials shall be the responsibility of the property owner. Landscape maintenance should incorporate environ-mentally sound management practices, including the use of water- and energy-efficient irrigation systems such as drip irrigation, and pruning primarily for plant health, replacing dead materials annually.
G.
Landscape materials that are used for screening shall be of a size that allows growth to the desired height and opacity within two years.
H.
Provision shall be made for ownership and maintenance of streets, squares, parks, open space, and other public spaces in a TND by dedication to an appropriate public agency or entity, such as the township, park district, or conservancy.
Site design should use Best Management Practices (BMPs) to minimize off-site stormwater runoff, increase on-site filtration, and minimize the discharge of pollutants to ground and surface water. Natural topography and existing land cover should be incorporated into stormwater management systems to the maximum extent practicable. Please refer to the Subdivision Code for a full list of BMPs and stormwater treatment requirements. New TND development and redevelopment shall meet the following requirements
A.
No untreated, direct stormwater discharges to wetlands or surface waters are allowed.
B.
Post development annual ground water recharge should approximate pre-development annual recharge conditions.
C.
Developers must remove 80 percent of the average annual load of total suspended solids from new developments. Erosion and sediment controls must be implemented to mitigate impacts during construction or other land disturbing activities.
D.
An approved list of specific stormwater Best Management Practices (BMPs) must be used for critical area discharges or discharges from areas with higher potential pollutant loads.
E.
Redevelopment stormwater management systems should improve existing conditions and meet standards to the extent possible.
F.
All treatment systems or BMPs must have operation and maintenance plans to ensure that systems function as designed.
The circulation system shall be used to organize and define the community, acting as functional and visual links between neighborhoods, the civic and commercial areas and open space. The circulation system shall be based on a defined network interconnected both internally and to existing development that provides adequate traffic capacity, provides connected pedestrian and bicycle routes (especially off-street bicycle or multi-use paths or bicycle lanes on the streets), controls through traffic, limits lot access to streets of lower traffic volumes, and promotes safe and efficient mobility through the community. In addition to the requirements of the subdivision regulations for traffic circulation, the following standards shall be followed:
A.
General street design. Traffic calming features such as curb extensions, traffic circles, and medians may be used to encourage slow traffic speeds.
B.
Pedestrian circulation. Convenient pedestrian circulation systems that minimize conflicts with automobiles shall be provided continuously throughout all development sites that consist of more than one building, and shall connect all buildings to public sidewalks. Where feasible, any existing pedestrian routes through the site shall be preserved and enhanced.
1.
Walkways in residential uses. Clear and well lighted walkways, a minimum of five feet in width, depending on projected pedestrian traffic, shall connect entrances into multiple-family dwellings to the adjacent public sidewalk and to any parking areas on the site.
2.
Walkways in civic, mixed and nonresidential uses. Clear and well lighted walkways shall connect building entrances to the adjacent public sidewalk and to any parking areas located on the site. Such walkways shall be a minimum of five feet in width, and shall be landscaped where feasible with trees, shrubs and other plant material, meeting the requirements of section 5.3.5.
3.
Transit access. Where transit service is available or planned, site plans shall provide pleasant and convenient access to transit stops. Where transit shelters are provided, they shall be placed in locations that promote security through natural surveillance and visibility, and shall be well lighted and weather-protected.
4.
Disabled accessibility. Sidewalks and pedestrian paths adjacent to and connecting civic and commercial uses shall be accessible to the physically disabled.
5.
Crosswalks. Intersections of pedestrian paths with streets shall be designed with clearly defined edges. Crosswalks shall be well lit and defined with contrasting paving materials or striping
C.
Bicycle circulation. Convenient bicycle circulation systems that minimize conflicts with automobiles and pedestrians shall be provided continuously throughout all development sites that include new or improved streets. Where feasible, any existing bicycle routes through the site shall be preserved and enhanced. Facilities for bicycle travel can consist of anything from off-street facilities (generally shared with pedestrians and other nonmotorized users) to separate, striped bicycle lanes on streets, to an unstriped curb lane wide enough for a car to pass a cyclist typically 14 feet, or for a car to pass a cyclist and a parked car.
D.
Motor vehicle circulation. Motor vehicle circulation shall be designed to minimize conflicts with pedestrian access and circulation and with surrounding residential uses.
1.
Existing street network. Site design should maintain the existing street network, where present, and restore any disrupted street grid where feasible.
2.
Service vehicles. Access for service vehicles shall be provided that does not conflict with pedestrian use. Access points for such vehicles should provide as direct a route as possible to service and loading dock areas, while avoiding movement through parking areas.
3.
Snow removal. Site design shall include areas for snow storage unless applicant provides an acceptable snow removal plan.
4.
Impervious surfaces. Reduction of impervious surfaces through the use of porous paving materials and techniques is strongly encouraged for areas that serve low-impact parking needs, such as remote parking lots, parking areas for periodic uses and parking in natural amenity areas.
5.
Parking requirements. Parking areas for shared or community use should be encouraged. Additionally
i.
One off-street parking space per bed and breakfast, inn, or hotel room shall be provided within 200 feet of the establishment.
ii.
One additional off-street parking space with unrestricted ingress and egress shall be provided for each secondary dwelling unit.
iii.
Individual having more than 50,000 square feet of floor area must provide adequate parking within reasonable walking distance of the establishment.
E.
Thoroughfare layout.
1.
Thoroughfare classification standards. Each thoroughfare within a TND shall be classified according to the following:
a.
Medium-volume commercial street. This thoroughfare is designed for a mixed-use center or neighborhood commercial center. The primary function is access to commercial or mixed-use buildings, but it is also part of the major thoroughfares network. On-street parking, whether diagonal or parallel, helps to slow traffic and facilitate pedestrian traffic. Additional parking is provided in lots to the side or rear of buildings. Alleys may be used for deliveries and alternate access.
b.
Medium-volume residential street. This thoroughfare is designed for primary access to individual residential properties, to connect thoroughfares of lower and higher function, and to access the major thoroughfare network. Design speed is 25 mph.
c.
Low-volume residential street. This thoroughfare is designed for primary access to individual residential properties as well as access to adjacent streets. Traffic volumes are relatively low, with a design speed of 20 mph.
d.
Residential access lane. This thoroughfare is designed for primary access to a limited number of residential properties. With minimal traffic volumes, traffic is completely subservient to the residential environment. Access lanes can be constructed as culs-de-sac, loop street, or short connecting lanes, and generally serve ten or fewer homes. Traffic volumes are extremely low, with a design speed of less than 20 mph.
e.
Public alley. These thoroughfares provide secondary access to residential properties where street frontages are narrow, where the street is designed with a narrow width to provide limited on-street parking, or where alley access development is desired to increase residential densities. Alleys may also be used to provide delivery access or alternate parking access to commercial properties. Traffic volumes are extremely low, with a design speed of less than 20 mph.
2.
Thoroughfares. Thoroughfares shall be designed to limit and slow through traffic by narrower roadways, shorter lengths and other geometric configurations. No lot shall be more than 1,000 feet from an intersection.
3.
Intersections. Intersections shall be at right angles whenever possible, but in no case less than 75 degrees. Low volume thoroughfares should be aligned to form three-way intersections creating an inherent right-of-way assignment (the through street receives precedence) which significantly reduces accidents without the use of traffic controls. A low volume thoroughfare that intersects with a higher order thoroughfare, such as a collector, should be aligned with another street to form a four-way intersection, which can easily be regulated by a stop sign or other traffic control device.
4.
Curb radii. The roadway edge at street intersections shall be rounded by a tangential arc with a maximum radius of 15 feet for local streets and 20 feet for intersections involving collector or arterial streets. The intersection of a local street and an access lane or alley shall be rounded by a tangential arc with a maximum radius of ten feet.
5.
Curb cuts. Access to individual residential lots shall be prohibited along arterial streets. Curb cuts shall be limited to intersections with other streets or access drives to parking areas for commercial, civic or multifamily uses.
6.
Clear sight distances. Clear sight distances shall be maintained at intersections, as specified in the following table, unless controlled by traffic signal devices:
7.
Street orientation. Thoroughfares and pedestrian access should enhance open spaces and prominent buildings and provide for the maximum number of lots with southern exposure. All thoroughfares shall terminate at other thoroughfares or at public land, except as specified below
a.
Access lanes that terminate in culs-de-sac may be permitted only when topography prevents the use of loop streets.
b.
Local streets may terminate in stub streets when such streets act as connections to future phases of the development.
c.
Local streets may terminate other than at other streets or public land when there is a connection to the pedestrian and bicycle path network at the terminus.
F.
[Table of street requirements.] The following table of street requirements for TND development supersedes the requirements of the subdivision regulations:
Public open space provides an orientation hierarchy and communal structure to a neighborhood. The series of specialized open spaces described herein are integral to the neighborhood environment. Open space is defined as all areas not covered by buildings or parking lots, streets, required setbacks, easements or golf courses. The following regulations are intended for areas not intended to be served by the Belvedere Park District.
A.
Every neighborhood needs places where people can meet.
B.
Open space shall be planned and improved, accessible and usable by persons living nearby. Improved shall mean clear of underbrush and debris, graded, landscaped, and may contain one or more of the following improvements: gazebos, benches, walls, fences, fountains, statues, memorials, ball fields, and/or play equipment. Walls and fences shall be made of stone, masonry, wrought iron, or wood and shall not exceed four feet in height, except that fences used in conjunction with ball fields may be of chain link constructions and may exceed four feet in height. Playground equipment, statues, memorials and fountains should be located towards the center of squares and parks.
C.
Except for greenways and parkways, required open space shall be located at or adjacent to the higher residential densities in the neighborhood. Yard sizes and layout will vary with housing types. Lots with small yards should be compensated by being located in close proximity to parks
D.
Parks shall have public street frontage on at least two sides
E.
Open space types/classifications. Except as noted herein, each of the various open space types described in this section may be considered as park land contributions required by the subdivision regulations. The open spaces in the TND fall into eight types that are defined as follows:
1.
Playground. Playgrounds provide sunny and shaded play areas for children as well as open shelter with benches for adults. Playgrounds may be built within Squares and Parks or may stand alone within a residential block. Playgrounds shall be fenced, securable and illuminated if not part of a Square or Park. The minimum size for a playground shall be 8,000 square feet; the maximum size for a playground shall be 15,000 square feet. There should be a playground within 1,000 feet of every residence. Playgrounds may be covered in sand, crushed stone or other surface approved by the county. Trees shall be planted along the perimeter of a playgound. Trees shall be spaced between 15 and 40 feet on center. Trees shall limb up to a minimum of 15 feet at maturity. Tree planting required along the perimeter of a playground is in addition to trees required to be planted in the adjacent public right-of-way.
2.
Close. A close is a front space for buildings interior to the block. It may be pedestrian or it may have a roadway loop around a green area within the roadway. Its minimum width must coincide with emergency vehicle turning standards. Trees shall be planted along the perimeter of a close. Trees shall be spaced between 15 and 40 feet on center. Trees shall limb up to a minimum of 15 feet at maturity. Tree planting required along the perimeter of a close is in addition to trees required to be planted in the adjacent public right-of-way.
3.
Square. Squares are green spaces which are inherently civic in nature. They are the setting for civic buildings and monuments, located either at their centers or edges. Formal tree planting maintains spatial definition of the square. Squares should be maintained to a higher standard than playgrounds and parks. Squares are areas for passive recreational use. Attached squares shall be bounded by streets on a minimum of three sides or 75 percent of their perimeter. Detached squares are entirely bounded by streets. The recommended minimum size of a Square shall be 20,000 square feet; the recommended maximum size shall be two acres. Squares may be entirely paved in crushed gravel, brick paver, or similar material, or partially paved. Areas not landscaped shall be landscaped. Squares shall have trees planted parallel to all rights-of-way with not less than two tree species a minimum of ten feet and maximum of 30 feet on center. Trees shall limb up to a minimum of 15 feet at maturity. Tree planting required along the perimeter of a close is in addition to trees required to be planted in the adjacent public right-of-way.
4.
Parkway. Parkways are open spaces designed to incorporate natural settings such as creeks and significant stands of trees within neighborhoods. Parkways are to be entirely bounded by streets or pedestrian rights-of-way within developed areas. Parkways differ from Parks and Squares in that their detailing is natural, i.e. informally planted, except along rights-of-way, and may contain irregular topography. Parkways may be used for certain active recreational uses such as walking, jogging, or bicycling. Trees shall be planted along all rights-of-way with not less than two tree species a minimum of ten feet and maximum of 30 feet on center. Interior areas shall remain natural and any additional plantings shall be informal in design. Tree planting required along the perimeter of a parkway is in addition to required tree planting in the adjacent public right-of-way. Parkways are encouraged but shall not be considered as park land contributions required in the subdivision regulations.
5.
Greenbelt. Greenbelts run along a creek or other unnamed waterways, or along the perimeter of a neighborhood, and serve to buffer a neighborhood from surrounding noncompatible uses such as a highway corridor or industrial district, or one neighborhood from another adjacent neighborhood. Generally, greenbelts are left in a natural state and are not for recreational purposes. Agricultural land may be used as a greenbelt. There is no tree planting requirement along the perimeter of greenbelts. Tree planting required in the public right-of-way along greenbelts shall be provided as required. Greenbelts are encouraged but shall not be considered as park land contributions required in the subdivision regulations.
6.
Parks. Parks may be designed for passive and/or active recreational use. Parks shall be bounded by public streets on a minimum of 50 percent of their perimeter. Parks are encouraged to be entirely bounded by streets. The minimum size shall be one acre; the maximum size shall be five acres. The maximum park size may exceed five acres if through design, the park creates a central open space which serves an entire neighborhood or group of neighborhoods, or incorporates physical features which are an asset to the community, e.g. lake or river frontage, high ground, significant stand of trees. Trees shall be planted along all rights-of-way with not less than two tree species a minimum of ten feet and maximum of 30 feet on center. Interior areas shall remain natural and any additional plantings shall be informal in design. Tree planting required along the perimeter of a park is in addition to tree planting required in the adjacent public right-of-way. Promenades and esplanades within a park may be formally planted with trees parallel to the walkway. Interior portions of the park are encouraged to be kept free of plantings. Areas for active use and any facilities which accompany such use shall have a tree planting design which integrates the structures into the park and defines the areas set aside for active recreation use from areas of passive use. Plantings in the interior portions of the park are encouraged to follow topographical lines. There shall be no area within a park of undergrowth or limbs lower than 12 feet from the ground.
7.
Green. Like the square, it is small, civic, and surrounded by buildings. Unlike the square, it is informally planted and may have an irregular topography. Greens are usually landscaped with trees at the edges and sunny lawns at the center. Greens should contain no structures other than benches, pavilions and memorials. Paths are optional. Tree planting required in the public right-of-way along a green shall be provided as required.
8.
Buffer. The buffer has the basic elements of a green with the added purpose of buffering the impact of traffic from a highway or boulevard. Buffers are encouraged but shall not be considered as park land contributions required in the subdivision regulations.
This article is established to create uniform landscape, screening and tree preservation standards for development of property in the county and review of plans therefore, in order to ensure that the county remains attractive, safe and comfortable. Landscaping required by this section shall be a condition to the issuance of a certificate of occupancy for any improvements built on a lot in the county. The landscape standards herein are established:
A.
To promote, protect and preserve the general health and safety of the people of the community and, as part of the general welfare, insure aesthetic compatibility among land uses within the community;
B.
To conserve soil and reduce soil erosion, reduce storm water run-off, to provide oxygen regeneration to enhance air quality, and to reduce the effects of urban heat islands;
C.
To minimize the harmful or nuisance effects resulting from noise, dust, debris, motor exhaust, headlight glare, artificial light intrusions, objectionable sights or activities, or similar incompatible impacts conducted or created by adjoining or nearby land use;
D.
To safeguard the environmental quality and aesthetic character of the community by limiting the removal and insuring replacement of trees upon private property within the county;
E.
To preserve, insofar as practical, existing vegetation and topographical features by limiting unnecessary clearing and modification of land, encouraging the retention of existing mature trees, requiring the replacement of indigenous trees with approved species; and,
F.
To encourage the energy efficient operation of land uses in the public interest.
A landscape plan prepared in accordance with the standards set forth in this article shall be required for any land development or use permit requiring a site plan review. Landscaping and screening required by this article shall be a condition to the issuance of a certificate of occupancy for any improvements built on a zoning lot in the county.
A.
Landscape plan required. A landscape plan shall be completed by an illinois licensed landscape architect. Requests for relief or revisions to these requirements of this section may be submitted to the zoning administrator for his consideration.
B.
Landscape plan elements. All final landscape plans shall include or have attached thereto to the following information:
1.
The name, address and phone number of the landscape architect or other person who prepared the plan and their signed stamp or seal; scale, north arrow, date of preparation, and identification of the plan as a final landscape plan.
2.
The location of existing and proposed improvements; including, but not limited to, buildings, with entry and exit points identified; all utilities, lighting, walls, and fences, parking areas (spaces delineated, including handicapped spaces, curbs); spot elevations and contours; existing and proposed berms; existing (four inch caliper and larger with drip line) and proposed plant material; paved surfaces; sign locations; public rights-of-way and easements, including street widths; refuse disposal areas; property lines; and, other exterior landscape amenities, such as bike paths, plazas, architectural paving, flag poles, foundations, benches, and bicycle racks.
3.
The planting schedule listing botanical names, common names, caliper or height, and quantity;
4.
The proposed treatment of all ground surfaces (pea gravel, ground covers, sod, seed and/or prairie).
5.
Other drawings and information as required; such as irrigation plan, if appropriate, grading and drainage plan, showing spot elevations and/or cross section, or methods to be used to protect plants and planted areas, e.g. curbs, ties, walls.
6.
Tree preservation and removal plan depicting existing trees on the property, indicating those to be removed with an "X" through them, tallying the number of trees to be preserved and the number to be removed.
7.
Provide elevations, cross sections, samples and/or photographs to indicate; texture of exposed surfaces, landscape material, scale, color of exposed surfaces, planting in relation to buildings, if requested by the zoning administrator.
8.
Provide technical information, samples, details, and/or photographs of materials to be used for light standards, benches, fences, walls, signage, safety lighting, and other site details.
C.
General design criteria.
1.
Selection of plant material.
a.
Planting materials used in conformance with the provisions of this article shall be:
1.
Of good quality and of a species normally grown in northern Illinois.
2.
Capable of withstanding the extremes of individual site microclimates.
3.
Selected for interest in its structure, texture, and color for its ultimate growth.
4.
Harmonious to the design, and of good appearance.
5.
In conformance with American Standard for nursery stock as approved by American National Standards Institute and issued as ANSI 2601.1986.
b.
Evergreens shall be incorporated into the landscape treatment of a site, particularly in those areas screening parking lots from dedicated public rights-of-way or property zoned for residential use.
c.
Minimum size. Minimum sizes for plant materials at time of installation for all landscape areas shall be as follows:
Ground cover shall be so planted and spaced that complete coverage can be obtained within two years after date of installation.
d.
Prohibited trees. The following trees shall not be used to satisfy the requirements of this article: Silver Maple (except new hybrids); Box Elder; Red Mulberry; Osage Orange; Poplar (all species); Black Locust; Weeping Willow (except in large, wet areas); Catalpa; Tree of Heaven; White Birch; Elm (except new hybrids; Russian Olive; Mountain Ash; Ash Trees (except those resistant to the Emerald Ash Borer); and, fruit trees.
3.
Installation of plant materials. Plant materials of all types and species shall be installed in accordance with the minimum technical specifications of the Illinois Landscape Contractors Association, including the provisions for guarantee and replacement.
4.
Maintenance of plant material. The owner of the premises shall be responsible for the maintenance, repair and replacement of all landscaping materials and barriers, including refuse disposal areas, walls, fences, and other amenities, as may be required by the provisions of this article. A means of irrigating plant material shall be provided. Installation of an automatic underground sprinkling system is recommended. If at any time a tree or shrub dies, the then current owner is responsible for replacing it in kind.
5.
Planting beds. Planting beds shall be mulched in their entirety with shredded bark or other similar organic material. Lava rock or large diameter (1½" diameter or larger) bark chips ("chunk bark") are not acceptable. Gravel and stone mulches are not permitted, unless specifically approved in writing by the county. Mulch beds at time of planting shall extend a minimum of two feet beyond the center of a shrub.
6.
Walls and fences.
a.
Plant materials shall be placed intermittently against long expanses of building walls, fences and other barriers to create a softening effect.
b.
All wood fences proposed to be used to satisfy the screening requirements of this article shall be of red cedar, redwood, cypress, or other approved decay resistant treated wood, at least six feet high, and of solid construction. Wood fences shall be not less than 75 percent opaque, with all supporting posts exposed to the lot interior. Stockade type fences are not permitted.
7.
Detention/retention basins and ponds. Detention/retention basins and ponds areas shall be planted. Such plantings shall include shade and ornamental trees, evergreens, shrubbery, hedges and/or other live planting materials. Plants must be able to tolerate wet conditions if planted within the basin. Native grasses and tall native vegetation shall be planted along the edges of detention/retention basins as a means to control the local geese population and to reduce erosion around the basin.
8.
Energy conservation.
a.
Deciduous trees, shrubs and vines should dominate the south and west sides of buildings and plaza areas to provide shade during the summer and limited shade during winter.
b.
Evergreens and other plant materials should be concentrated on the north side of buildings in a manner which dissipates the effect of winter winds.
9.
Berms. Earthen berms and existing topography shall, wherever practical, be incorporated into the landscape treatment of a site. Berms shall not exceed a maximum slope of four horizontal units to one vertical unit (4:1), except in parking islands, where the maximum slope shall not exceed two horizontal units to one vertical unit (2:1).
10.
Topography. Where natural, existing topographic patterns contribute to the beauty and utility of a development, they shall be preserved and developed. Modification of topography may be allowed where it contributes to the aesthetic quality of the site.
11.
Protection of plant material and/or people. In locations where plant materials may be susceptible to injury or cause personal injury, appropriate curbs, tree guards, or other devices shall be provided.
12.
Areas where plant material will not prosper. In areas where general planting will not prosper, other materials such as fences, walls and pavings of wood, brick, stone, and cobbles shall be used. Carefully selected plant material shall be combined with such materials where possible.
13.
Exterior landscape lighting. Lighting standards and fixtures when used to enhance the building design and the adjoining landscape shall be of a size and design compatible with the building and adjacent areas. Lighting shall be restrained in design, and excessive brightness and brilliant colors shall be avoided. Electrical service shall be underground.
14.
Amenities. In business, office and industrial districts seating areas, paved areas, plant enclosures, benches, waste receptacles, lights, and other amenities shall be provided.
15.
Service yard screening. Service yards, loading docks and other places that tend to be unsightly shall be screened from view. Screening shall be equally effective at all times of the year.
a.
Trash dumpsters and other waste receptacles or equipment shall be placed on a solid concrete surface and shall be screened on three sides with a solid wall composed of similar materials used on the primary structure on the lot and at least six feet in height, and a solid single or double access gate on the fourth side.
b.
All utility equipment (meters, transformers, etc.) shall be provided with appropriate planting screens.
c.
Garage doors and loading areas on nonresidential property shall be concealed from view (at grade) from adjoining residential zoned property.
d.
All outdoor storage facilities for raw materials and finished products within 500 feet of a residence district shall be effectively screened and enclosed by a solid wall or fence at least eight feet in height. If materials to be stored outdoors are in excess of eight feet in height, then landscape screening shall be provided in addition to the fence or wall installed along the outside perimeter of the fence or wall, equal or exceeding the height of the materials to be stored outdoors.
16.
Innovative landscaping. Innovative landscaping treatments are encouraged and shall be considered as a positive attribute in connection with any request for a variation from the requirements of this article.
17.
Intersection visibility. Landscaping must be designed and installed to minimize potential obstruction of critical sight lines. Landscape planting shall be so designed as to avoid obstruction of a motorist's vision at the intersection of parking aisles, driveways, or public or private streets and alleys. Unobstructed visibility between two and one-half feet and eight feet above the height of the pavement must be maintained at all intersections. To maintain this visibility, no berms, shrubs or other landscape material which will reach a mature height greater than two and one-half feet shall be permitted within a sight triangle. Trees are allowed in sight triangles provided the lowest branching begins not less than eight feet above the pavement.
18.
Edging. Edging is required on commercial, industrial, or institutional properties, and recommended on residential and other properties to separate grass areas from shrubs, ground cover and mulch and shall be a good quality steel, plastic, or weather resistant (redwood, cedar) or treated wood secured with stakes.
19.
Artificial plants. No artificial plants of any type shall be used to satisfy any requirements of this article.
20.
Ground cover. All drainage swales and slopes having a slope of three vertical units to one horizontal unit (3:1) or greater shall be sodded. All other ground areas not covered by buildings, parking, sidewalks or other impervious surfaces, or occupied by planting beds shall be graded smooth with a minimum of six inches of black dirt after compacting and removing stumps, rocks and other debris, and shall be seeded or sodded to prevent soil erosion and sedimentation of public drainage systems, creeks, streams, rivers and wetlands.
21.
Water conservation. Wherever possible landscape designs and plant material which is indigenous and or drought tolerant should be used to reduce the need for irrigation.
22.
Flower beds. Flower beds are encouraged and shall be planted in masses in acceptable areas to create color, texture and visual interest.
(Ord. No. 09-23, § 1, 5-20-2009)
In addition to the general design criteria prescribed in section 5.4.2.C., the following requirements shall also apply to landscaping in rights-of-way.
A.
Scope. Where a zoning lot abuts a dedicated public right-of-way, trees shall be provided in accordance with the provisions of this article.
B.
Street trees. Street trees shall be planted in all parkways having a width of five feet or more. The county shall have the discretion to require trees be planted outside of the right-of-way if the parkway is less than five feet wide or overhead or buried utilities may conflict with the growth of street trees. Street trees shall be planted not more than 40 feet apart whenever possible, and shall have a minimum trunk diameter of two and one-half inches measured six inches above ground level.
In addition to the general design criteria prescribed in section 5.4.2.C., the following requirements shall also apply to landscaping parking lots.
A.
Scope. All parking lots designed for 20 or more parking spaces shall be landscaped in accordance with the provisions of this article.
B.
Interior parking lot landscaping. To define circulation within a parking lot and to visually and physically break-up long rows of parking spaces, landscape islands are required to be provided within parking lot areas, as follows:
1.
Parking aisle landscape islands. A landscaped island shall be provided at the end of each parking row. The island shall be protected by a continuous concrete barrier curb and shall have a minimum width of seven feet, measured back-of-curb to back-of-curb, and shall have a depth equal to the adjoining parking space. Each parking aisle landscape island shall contain two deciduous shade trees.
2.
Parking space landscape islands. In addition to parking aisle landscape islands, one or more of the following alternatives shall be used to divide each row of parking having 20 spaces or more:
a.
Full parking space landscape island. One landscape island protected by a continuous concrete barrier curb and having a minimum width of seven feet, measured back-of-curb to back-of-curb, and a depth equal to the adjoining parking space, may be provided for each 20 parking spaces in the parking row. Said landscape islands shall be dispersed throughout the parking row. Each said landscape island shall contain one shade tree; or,
b.
Partial parking space landscape island. One landscape island positioned at the front corner of a parking space, protected by a continuous concrete barrier curb and having minimum dimensions of six and one-half feet square, measured back-of-curb to back-of-curb, may be provided for each ten parking spaces in the parking row. Said landscape islands shall be dispersed throughout the parking row and shall not be used in parking rows along the perimeter of a parking lot. Each said landscape island shall contain one shade tree; or,
c.
Continuous parking row landscape island. A continuous landscape island protected by a continuous concrete barrier curb and having a minimum depth of seven feet, measured back-of-curb to back-of-curb, may be provided between parking rows. Said landscape island shall not be used in parking rows along the perimeter of a parking lot. Each said landscape island shall contain one shade tree for each 20 parking spaces in the parking row.
3.
Additional landscaping standards. In addition to the shade trees required in this section, each landscape island required herein shall be landscaped with an appropriate number and selection of shrubs, flowers, groundcovers, sod and mulch. Shrubs planted in a parking lot landscape island shall not exceed a mature height of 30 inches above the adjoining pavement. No tree planted in a parking lot landscape island shall have branches maintained at a height less than six feet above the adjoining pavement.
C.
Parking lot perimeter landscaping.
1.
Front and corner side yards:
a.
Where a parking lot is located in or adjacent a front or corner side yard in a residential district, continuous landscaping shall be provided across not less than 100 percent of the parking lot frontage to a minimum height of three feet. Such landscaping shall consist of any combination of berms, shade and ornamental trees, evergreens, shrubbery, hedges, and/or other live planting material.
b.
Where a parking lot is located in or adjacent a front or corner side yard not in a residential district, continuous landscaping shall be provided across not less than 60 percent of the parking lot frontage to a minimum height of three feet. Such landscaping shall consist of any combination of berms, shade and ornamental trees, evergreens, shrubbery, hedges, and/or other live planting material. Plantings may be placed in clusters, containing at minimum seven evergreens and/or shrubs per cluster, spaced at intervals of approximately 35 feet along the frontage of the parking lot. However, when a continuous row of shrubs or hedges is chosen, the entire parking lot frontage shall be screened.
2.
Rear and side yards:
a.
Where a parking lot is located in a yard adjacent a residential zoning district, landscaping shall be provided as follows:
i.
Screening between the parking lot and the residential property line shall be a minimum of six feet in height.
ii.
Shade trees shall be provided at the equivalent of one for each 50 lineal feet, or fraction thereof, of parking lot frontage and shall not be planted more than 40 feet apart.
iii.
Other planting material, including ornamental trees, evergreens, shrubbery, hedges, and/or other live planting materials shall be provided in a continuous row covering 100 percent of the frontage of the parking lot adjacent the residential lot(s).
iv.
Except where occupied by planting beds, all side and rear yard perimeter landscaping area shall be sodded or seeded.
b.
Where a parking lot is located in a yard adjacent a nonresidential property; landscaping shall be provided across not less than 50 percent of that portion of the parking lot abutting the property line to a minimum height of three feet. Such landscaping shall consist of any combination of berms, shade and ornamental trees, evergreens, shrubbery, hedges, and/or other live planting materials. Plantings may be placed in clusters, containing not less than seven shrubs per cluster, spaced at intervals of approximately 35 feet along the property line.
In addition to the general design criteria prescribed in section 5.4.2.C., the following requirements shall also apply to foundation landscaping.
A.
[Perimeter landscaping.] All nonresidential and multiple family development shall provide perimeter landscaping as prescribed herein. Parking lots located on the perimeter of a lot shall comply with the requirements of section 5.4.4.C.
B.
Setback. A landscaping area not less than ten feet in width shall be located around the perimeter of all buildings, except where impractical, i.e. loading dock areas, entryways, etc.
C.
Coverage. Required foundation landscaping areas shall remain open and free of all paving except where pedestrian sidewalks to buildings and other similar paving are required.
D.
Landscaping materials. Foundation landscaping consist of shade and ornamental trees, evergreens, shrubbery, hedges, and/or other live planting materials. Particular attention shall be paid toward screening mechanical equipment, bicycle parking areas, and loading docks; softening large expanses of building walls; and accenting entrances and architectural features of the building(s).
In addition to the general design criteria prescribed in section 5.4.4.C., the following requirements shall also apply to perimeter landscaping.
A.
[Perimeter landscaping.] All nonresidential and multiple family development shall provide perimeter landscaping as prescribed.
B.
Non-residential property abutting nonresidential property. Where nonresidential abuts property in a business, office or industrial district, landscaping shall be provided as follows:
1.
Shade trees shall be provided at the equivalent of one for each 75 feet, or fraction thereof, of frontage along the abutting property line. Such trees shall be planted no more than 40 feet apart and may be clustered or spaced linearly as determined appropriate.
2.
Other landscaping materials, including berms, ornamental trees, evergreens, shrubbery, hedges, and/or other live planting materials shall be provided at appropriate locations along the abutting property line.
C.
Non-residential property abutting residential property. Where nonresidential property abuts property in a residential district, landscaping shall be provided as follows:
1.
A solid screen six feet in height, shall be provided along the entire length of the abutting property line. Such screen shall consist of a solid wood fence, berms, trees, evergreens, shrubbery, and/or other live planting materials, necessary to provide 100 percent coverage.
2.
Shade trees shall be provided at the equivalent of one for each 75 feet, or fraction thereof, of frontage along the abutting property line. Such trees shall not be planted more than 40 feet apart and may be clustered or spaced linearly as determined appropriate.
D.
Residential property abutting existing commercial property. Where any newly classified residential property abuts property in any business or industrial district, landscaping shall be provided as follows:
1.
Shade trees shall be provided at the equivalent of not less than one for each 75 feet, or fraction thereof, of frontage along the abutting property line. Such trees shall not be planted more than 40 feet apart and may be clustered or spaced linearly as appropriate.
2.
Other landscaping materials, including berms, if possible, ornamental trees, evergreens, shrubbery, hedges, and/or other live planting materials shall be provided at intermittent locations across 50 percent of the abutting property line. Shrubs shall be placed in clusters containing at least seven per cluster, spaced at intervals of approximately 35 feet along the abutting property line.
E.
Multiple-family residential property. Where multiple-family residential property abuts property in any zoning district, landscaping shall be provided as follows:
1.
Shade trees shall be provided at the equivalent of not less than one for each 75 feet, or fraction thereof, of frontage along the abutting property line. Such trees shall not be planted more than 40 feet apart and may be clustered or spaced linearly as appropriate.
2.
Other landscaping materials, including berms, if possible, ornamental trees, evergreens, shrubbery, hedges, and/or other live planting materials shall be provided at intermittent locations across 50 percent of the abutting property line. Shrubs shall be placed in clusters containing at least seven per cluster, spaced at intervals of approximately 35 feet along the abutting property line.
(Ord. No. 09-23, § 1, 5-20-2009)
The purpose of this section is to alleviate or prevent the congestion of the public streets and to promote the safety and welfare of the public by establishing minimum requirements for the off-street parking and loading and unloading of motor vehicles in accordance with the use to which property is put.
The off-street parking and loading provisions of this ordinance shall apply as follows:
A.
For all building and structures erected and all uses of land established after the effective date of this ordinance, accessory parking and loading facilities shall be provided as required by the regulations of the district in which building or uses are located. However, where a permit has been issued prior to the effective date of this ordinance, and provided that construction is begun within one year of such effective date, and diligently prosecuted to completion, parking and loading facilities as required herein need not be provided.
B.
When the intensity of use of any building, structure or premises shall be increased through the addition of dwelling units, gross floor area, seating capacity or other units of measurements specified herein for required parking or loading facilities, parking and loading facilities as required herein shall be provided for such increase in intensity of use.
C.
However, no building or structure lawfully erected or use lawfully established prior to the effective date of this ordinance shall be required to provide such additional parking or loading facilities unless and until the expansion equals 50 percent of the units of measurement existing upon the effective date of this ordinance, in which event parking or loading facilities as required herein shall be provided for the total increase.
D.
Whenever the existing use of a building or structure shall be changed to a new use, parking and loading facilities shall be provided as required for such new use. However, additional parking or loading facilities shall be required only in the amount by which the requirements for the new use would exceed those for the existing use if the latter were subject to the parking and loading provisions of this ordinance.
A.
Existing parking and loading facilities. Accessory off-street parking or loading facilities shall not hereafter be reduced below, or if already less than, shall not further be reduced below, the requirements of this title for a similar new building or use.
B.
Permissive parking and loading facilities. Nothing in this article shall be deemed to prevent the voluntary establishment of off-street parking or loading facilities to serve any existing use of land or buildings provided that all regulations herein governing the location, design, improvement and operation of such facilities are adhered to.
C.
Damage or destruction. For any conforming or legally nonconforming building for use which is in existence on the effective date of this title, which subsequent thereto is damaged or destroyed by fire, collapse, explosion or other cause, and which is reconstructed, re-established or repaired, off-street parking or loading facilities equivalent to any maintained at the time of such damage or destruction shall be restored or continued in operation, except that when such damage or destruction exceeds more than 50 percent of the value of the building or use, sufficient off-street parking or loading facilities shall be provided as required by this title for equivalent new use on construction.
D.
Computation of required off-street parking spaces and loading berths. When determination of the number of off-street parking spaces and loading berths required by this article results in a requirement of a fractional space, any fraction of one-half or less may be disregarded, while a fraction in excess of one-half shall be counted as one parking space or loading berth.
E.
Yards. Off-street parking spaces and loading berths and access thereto in industrial or commercial districts, or for nonresidential uses in residential districts may be located in any required yards, except no parking spaces or loading berths may be located within 20 feet of adjacent residential districts. Off-street parking spaces in any zoning district shall not be located within ten feet of a front or corner side lot line.
F.
Design and maintenance.
1.
Open and enclosed parking spaces and loading berths. Parking spaces and loading berths may be open to the sky or enclosed in a building.
2.
Screening and landscaping. All open loading areas and all parking areas providing space for five or more vehicles shall be effectively screened in accordance with the landscaping requirements in section 5.4 herein.
3.
Illumination. Lighting used to illuminate off-street parking and loading areas shall be directed away from all adjacent property and roadways and illumination levels shall not exceed one foot-candle at any property line.
4.
Repair and service. No motor vehicle repair work of any kind shall be permitted in conjunction with open off-street parking or loading facilities in any district.
5.
Curbing. The perimeter of all loading areas and parking areas for Industrial and Commercial uses providing loading berths for one or more vehicles or parking space for five or more vehicles shall provide vehicular barriers around the perimeter of the loading area and parking area. The vehicular barriers of such loading and parking areas shall be continuous concrete barrier curbing, minimum six inches high by 18 inches wide.
6.
Alternatives to curbing. Stormwater Best Management Practices (BMPs), including, but not limited to, grassed swales, organic filters, bio-retention, porous pavements and other emerging treatments may be used as an alternative to curbing for stormwater management purposes. BMPs should be designed and implemented by a licensed engineer and should provide a maintenance schedule to the county.
7.
Striping. The pavement surface of off-street parking and loading areas shall be striped to define each loading berth and parking space. Striping shall be a minimum of four inches in width for the length of each space and shall be painted white or yellow. All areas designated as fire lanes and/or no parking area shall be painted yellow.
8.
Circulation and access. Parking lot driveways on opposite sides of an arterial or collector street shall be either aligned or off-set by no less than 150 feet between the centerlines of each opposing driveway. Parking aisles throughout the parking lot shall align as closely as practical in order to create four-way intersections. Shared driveways and access easements between adjoining lots shall be encouraged to reduce the number of parking lot driveways along public streets.
G.
Submission of land plan. Any application for an improvement location permit, or certificate of occupancy where no permit is required, shall include therewith a land plan drawn to scale and fully dimensioned showing any parking or loading facilities, lighting, landscaping, signs and other improvements accessory thereto provided in compliance with this title.
H.
Construction and surfacing. Except as provided otherwise herein, the construction and design of off-street parking facilities shall be reviewed by the county engineer to determine:
1.
That every parking space, including access thereto, shall have an all-weather dust-free surface and shall be so graded and drained as to dispose of surface water accumulation by means of a positive storm water drainage system connected to a public drainage way.
2.
That parking areas shall be constructed in accordance with a minimum structural number of two and one-half and a minimum surface slope of one percent, provided that no parking area shall have less than two and one-half inches of bituminous surface course.
3.
That every driveway approach comply with the following standards. For the purpose of this section a driveway approach shall mean that portion of the driveway located in the right-of-way of a street.
a.
For residential uses; six inches of concrete with mesh on six inches of compacted crushed gravel or crushed stone.
b.
For nonresidential uses; six inches of concrete with mesh on eight inches of compacted crushed gravel or crushed stone.
c.
For sidewalks at driveway crossings; six inches of concrete with mesh on six inches of compacted crushed gravel or crushed stone.
4.
Alternative paving materials and "green" construction methods may be used if the county engineer determines that the minimum requirements for traffic weight, stormwater drainage, and maintenance will be met.
In addition to the standards and requirements in section 5.5.3, herein, off-street parking facilities shall comply with the following:
A.
Control of off-site off-street parking facilities. When required parking facilities are provided off-site, that is on land other than the zoning lot on which the building or use served by such off-site facilities is located, they shall be and remain in the same possession or ownership as the zoning lot occupied by the building or use to which the off-street parking facilities serve.
B.
Use of parking facilities. Off-street parking facilities accessory to residential uses and developed in any residential district in accordance with the requirements of this section shall be used solely for the parking of passenger automobiles owned by occupants of the dwellings to which such facilities are accessory or by guests of said occupants. Required parking facilities accessory to residential structures shall not be used for the storage of commercial vehicles or the parking of automobiles belonging to employees, owners, tenants, visitors, or customers of business, office or manufacturing establishments. For the purpose of this paragraph, storage shall mean a vehicle parked on the zoning lot for more than 48 hours in any 72-hour-period.
C.
Design and maintenance.
1.
Size. Except for parallel parking spaces and handicap parking spaces, required off-street parking space shall be 180 square feet in area and shall be no less than 20 feet long with a vertical clearance of seven feet, all exclusive of access drives, aisles, ramps, columns, office or work space, provided however that in measuring the length of a parking space the area safely occupied by a vehicle beyond a curb stop, whether paved or unpaved, shall be included. Each off-street parking space parallel to the parking aisle or driveway shall be no less than nine feet wide and 23 feet in length.
2.
Access and on-site circulation. Off-street parking areas shall be designed so as to require egress from the zoning lot to the street or alley by forward motion of the vehicle.
a.
Aisles. Each required off-street parking space shall open directly upon an aisle or driveway of such width and design as to provide safe and efficient means of vehicular access to such parking space. Aisle widths shall not be less than the following: 24 feet for any aisle designed for two-way traffic; 24 feet for each perpendicular parking space; 18 feet for each parking space on a 60° angle to the aisle; 13 feet for each parallel parking space or parking space on a 45° or 30° angle to the aisle; and 12 feet for each parallel parking space.
b.
Parking modules. A parking module shall mean a row of parking spaces, a parking aisle, and another row of parking spaces. Parking module widths shall not be less than the following:
Sixty-one feet for perpendicular parking spaces; 60 feet for parking spaces on a 60° angle to the aisle; 53 feet for parking spaces on a 45° angle from the aisle; 49 feet for parking spaces on a 30-degree angle from the aisle; and, 30 feet for parallel parking modules.
c.
Driveways. All off-street parking facilities shall be designed with appropriate means of vehicular access to a street or alley in a manner which will least interfere with traffic movements on the public streets:
1.
Intersection setbacks.
i.
Driveways located along an arterial road right-of-way shall not be located less than 60 feet from an intersecting right-of-way.
ii.
Driveways located along a collector road right-of-way shall not be located less than 50 feet from an intersecting right-of-way.
iii.
Driveways located along a local street or cul-de-sac right-of-way shall not be located less than 30 feet from an intersecting right-of-way.
2.
Street transition. All parking facility driveways which lead to or from a public right-of-way shall provide a transition space of not less than 30 feet in length from the public right-of-way to the nearest parking space, an intersecting driveway or parking aisle along said driveway to ensure traffic safety and circulation efficiency.
3.
Width. All driveways installed, altered, changed, replaced, or extended after the effective date of this title shall meet the following requirements: no driveway for vehicular ingress and egress shall exceed 28 feet in width at the right-of-way and 34 feet in width at the roadway in residential districts; no driveway for vehicular ingress and egress shall exceed 34 feet in width at the right-of-way and 44 feet in width at the roadway in commercial and industrial districts;
4.
Queuing spaces. Queuing spaces shall be provided accessory to drive-up service facilities in the number prescribed in the table of parking requirements. Queuing spaces shall be located so as to not interfere with parking or pedestrian and vehicular circulation on the zoning lot, or circulation on adjacent public streets. Queuing spaces shall measure ten feet in width and 18 feet in length. Queuing space shall not occupy the same spaces as parking or aisles thereto.
D.
Location. The location of off-street parking spaces accessory to the use served shall be prescribed hereinafter:
1.
For uses in residential districts. Parking spaces accessory to dwellings shall be located on the same zoning lot as the use served. Parking spaces accessory to uses other than dwellings in a residential district may be located on an adjacent lot or directly across a street or alley from the lot occupied by the use served, but in no case more than 300 feet from such use.
2.
For uses in commercial and industrial districts. All required parking spaces shall be not more than 500 feet from the use served, except for spaces accessory to dwelling units which shall be not more than 300 feet from the uses served.
E.
Handicapped parking. Any parking area for use by the general public shall provide parking spaces designated and located to accommodate the handicapped. Parking spaces reserved for the handicapped shall be located, designed, identified, and otherwise provided in accordance with the most restrictive requirements of the Illinois Accessibility Code, 71 Illinois Administrative Code, Part 400, and the Americans with Disabilities Act of 1990 (ADA) Guidelines, 28 C.F.R. Part 36, Appendix A as the same are from time to time amended.
1.
Size. Each parking space reserved for handicapped use shall be at least 16 feet in width by 20 feet in length.
2.
Enforcement. The designation of handicapped parking stalls shall constitute consent by the property owner to the enforcement by the county of the restriction of use of such spaces to handicapped motorists.
For the following uses, off-street parking spaces shall be provided as required hereinafter.
A.
Other uses. For uses not listed in section 5.5.5.F., table of parking requirements, parking spaces shall be provided on the same basis as required for the most similar listed use, or as determined by the zoning administrator.
B.
Parking basis. Parking spaces required for floor area shall be based on the maximum net floor area, herein defined, devoted to such use. Parking spaces required for employees shall be based on the maximum number of employees on duty, or residing, or both, on the premises at any one time.
C.
Floor area exemptions. When two or more nonresidential uses are located on the same zoning lot, only one exemption in terms of floor area, as set forth in section 5.5.5.F., table of parking requirements, may be permitted.
D.
Shared parking. When two or more nonresidential uses are located on the same zoning lot and their respective hours of operation do not overlap, the zoning enforcement officer may authorize a reduction in the total number of required parking spaces subject to the following conditions:
1.
Not more than 50 percent of the parking spaces required for a building or use may be supplied by the parking facilities required for any other building or use on the same zoning lot.
2.
The number of shared parking spaces for two or more distinguishable land uses shall be determined by the following procedure:
a.
Multiply the minimum parking required for each individual use, as set forth in section 5.5.5.F., table of parking requirements, by the appropriate percentage indicated in section 5.5.5.D.3., schedule of shared parking, for each of the six designated time periods therein.
b.
Sum the required parking for each of the six columns.
c.
The minimum parking requirement shall be the largest sum among the six columns resulting from the above calculations.
3.
Schedule of shared parking:
4.
If one or all of the land uses for which shared parking facilities is proposed do(es) not conform to one of the general land use classifications in the shared parking schedule as determined by the zoning administrator, then the applicant, owner or developer shall submit sufficient data to indicate that there is not substantial conflict in the principal hours of operation of the uses. The property owner(s) involved in the shared use of off-street parking facilities shall submit a legal agreement, approved by the Boone County State's Attorney, guaranteeing that the parking spaces shall be maintained so long as the uses requiring parking are in existence or unless the required parking spaces are provided elsewhere in accordance with this article. Such instrument shall be recorded by the property owner with the county recorder of deeds, and a copy filed with the zoning administrator.
E.
[Reserved.]
F.
Table of parking requirements. For the purpose of this ordinance the following parking requirements shall apply
(Ord. No. 10-28, § 1, 5-19-2010)
A.
Every building, structure, or lot used for business and industrial purposes shall be provided with off street loading spaces for the purpose of loading goods on and off vehicles.
B.
All loading berths shall be located on the same zoning lot as the use served. Where the use abuts a residential district, the loading berth shall be screened from the view of said residential district. No loading berth shall be located in a required setback yard.
C.
All loading berths shall have a dustless, all weather surface.
D.
All loading berths shall be at least 12 feet in width by at least 30 feet in length.
E.
The number of loading berths required shall be determined as follows:
The purpose of this section is to promote and protect the public health, welfare, and safety by regulating existing and proposed outdoor advertising signs and outdoor signs of all types. It is intended to protect property values, create a more attractive economic and business climate, enhance and protect the physical appearance of the community, and preserve the scenic and natural beauty of designated areas. It is further intended to reduce sign or advertising distraction and obstructions that may contribute to traffic accidents, reduce hazards that may be caused by signs overhanging or projecting over public rights-of-way, provide more open space, curb the deterioration of the natural environment, and enhance community development.
A.
Any sign placed on land or on a building for the purposes of identification or protection of the same or for advertising a use conducted thereon or therein shall be deemed to be accessory and incidental to such land, building, or use.
B.
All signs erected for directional purposes shall be confined to those that are of general public interest and such signs shall be limited to the giving of information.
C.
All other signs, referred to as off-site signs, are deemed by this section to constitute a separate use, and shall be regulated as such. Any widespread display of off-site signs is deemed to be inappropriate to the character and sound development of the county and it is intended by this section that the streets and highways in the county shall not be made available for such display, but that off-site signs shall be confined to locations in types of districts in which it is deemed not to be incongruous with other uses permitted therein.
D.
No sign requiring a permit shall hereafter be erected, re-erected, constructed, or altered until after a permit for the same has been issued by the zoning enforcing officer and the payment of a fee pursuant to a fee schedule adopted by the Boone County Board has been made.
E.
Illuminated signs shall be diffused or indirect and shall be arranged so as not to reflect direct rays of light into adjacent districts or into the public right-of-way. All illuminated signs shall have a horizontal cut-off, so that the light source is not visible directly from the side (90 degrees) or from any angle above the light source (91 to 180 degrees). Off-site signs of any type, home occupation signs, and signs of a temporary nature shall not be illuminated.
F.
Signs located on Federal Aid Primary roads and any highway that is part of the National System of Interstate and Defense Highways shall be subject to the rules and regulations of the Department of Transportation of the State of Illinois.
G.
Provisions of this section shall not apply to the following signs:
1.
Official traffic, fire and police signs, signals, and devices, and markings of the state, county, or city.
2.
Official signs and notices erected and maintained by public officers or agencies within their territorial jurisdiction for the purpose of carrying out an official duty or responsibility.
3.
Signs permitted by law within the highway right-of-way.
4.
Historic markers not greater than 12 square feet in area and conforming to setback requirements of this ordinance.
5.
Signs erected inside a building.
6.
Signs required by building codes.
7.
Manufactures' labels on farm structures and buildings standard to the assembly of the product.
8.
Signs located on private property not subject to view from other property or from public property.
H.
Prohibited signs. The following signs and advertising devices are prohibited:
1.
Any sign erected in or extending into the public right-of-way.
2.
Animated signs and any other sign or advertising device such as pinwheels, streamers, wind-operated devices, or fluttering signs.
3.
Any sign attached to a utility pole, fire hydrant, curb, public sidewalk, or other surface located on public property.
4.
Signs painted or posted directly upon the surface of any rocks, trees, or other natural features.
5.
Any sign erected in any location where, by reason of its location, will obstruct the view of any authorized traffic sign, signal, or other traffic control device. No sign shall be erected in the sight triangle, as defined in section 5.2, or any other location where it will obstruct the vision of the public right-of-way to a vehicle operator during ingress to or egress from public roadways.
6.
Off-site signs, except as provided in section 5.6.6 and section 5.6.8.
7.
Flashing signs, including, electronic message centers, but not including i) digital time and temperature signs involving only that information and no further or additional information of any advertising nature; and ii) electronic message centers erected on property zoned B-1, B-2, I-1 or I-2.
8.
Signs which contain characters, cartoons, statements, works, or pictures of an obscene, indecent, prurient, or immoral character.
I.
Directional signs for public places owned or operated by federal, state, or local governments or agencies; publicly or privately owned natural, historic, cultural, scientific, educational, or religious sites; and areas of natural scenic beauty or naturally suited for outdoor recreation, deemed to be of general public interest shall be permitted in all districts and shall not require a permit. Content of the wording of such signs shall be limited to the name of the attraction, direction, and distance. Each attraction may be permitted a maximum of eight signs, and there shall be no more than two signs for the same attraction on the same side of a given road. Such signs shall not exceed 12 square feet per side, for a total of 24 square feet, and shall not be subject to setback requirements, provided they are located no closer than 50 feet to an existing driveway or intersection.
J.
Sign maintenance: all signs, together with their supports, braces, guys, and anchors shall be kept in good repair and shall be painted or replaced when necessary to prevent corrosion or to correct peeling or excessive fading.
(Ord. No. 15-19, § 1, 7-15-2015)
All signs shall be mounted in one of the following ways:
A.
Attached to a building and not higher than the highest point of any building to which a sign is attached.
B.
Back-to-back so that the back of the sign will be screened from public view, or mounted so that the backs of all signs or sign structures showing to public view shall be painted and maintained in a color that blends with the surrounding environment.
C.
The gross sign area shall be the area within the single continuous line enclosing the extreme limits of such sign. It does not include any structural or framing elements. All faces of a sign that bear media elements shall be used in computing total gross area.
A.
Signs of six square feet or less in area shall not be subject to setbacks unless otherwise specified. Such signs shall not be located within the public right-of-way.
B.
Unless otherwise specified, signs greater than six square feet shall be set back a minimum of ten feet from the right-of-way and five feet from the side property lines. Signs greater than 100 square feet in area shall be set back a minimum of 20 feet from the right-of-way and five feet from the side property lines.
C.
In any district on any corner lot, no signs shall be erected or maintained so as to interfere with traffic visibility across a corner, or within the sight triangle as defined in section 5.2 of this ordinance.
A.
In residential districts, the following signs are exempt under specified conditions:
1.
Nameplates and identification signs not exceeding three square feet per side not to exceed a total of six square feet in area. Such signs shall not exceed one per dwelling unit. Content shall be limited to the occupant's name and address, and to the occupant's business when identifying an approved home occupation in accordance with section 4.3 of this ordinance.
2.
Bulletin boards and identification signs for churches, schools, service clubs and other permitted institutions and organizations shall be allowed a maximum of 32 square feet per side, not to exceed a total of 64 square feet.
3.
Signs for garage sales, or the sale, rental, or lease of land, lots, or houses, shall be permitted on the premises of the item being offered. Such a sign shall not exceed six square feet per side. one such sign is permitted for each road frontage on a given lot.
4.
Signs accessory to parking areas designating parking area entrances or exits are limited to one sign per entrance or exit and shall not exceed three square feet in area. Such signs shall not project beyond the property line nor shall they project more than seven feet above street level. A parking area may also include one sign limited to nine square feet which designates conditions for the use of the parking area.
B.
In residential districts (and in subdivision developments established prior to May 10, 1978, in the agriculture districts), a permit is required for the following signs:
1.
Signs accessory to roadside stands shall be permitted on lots with roadside stands for the purpose of identifying the stand and the products for sale. There shall not be more than one such sign on each side of the stand. No such sign shall project more than 15 feet above ground.
2.
Residential development or construction signs may be allowed a maximum of 32 square feet per side, not to exceed a total of 64 square feet and shall conform to all setback requirements. Such signs shall be removed when either development or construction is completed.
3.
Subdivision identification signs: each subdivision may be allowed a total of 96 square feet of identification signage. Each individual identification sign must be located on-site and shall not exceed 48 square feet per side. Such signs shall be located only at intersections with state, county, or township roads and shall meet all setback requirements of this ordinance.
C.
No freestanding sign in a residential district shall exceed 15 feet in height.
A.
In the agriculture districts, the following signs shall be exempt under specified conditions:
1.
Nameplates and identification signs not exceeding three square feet per side not to exceed a total of six square feet in area. Such signs shall not exceed one per dwelling unit. Content shall be limited to the occupant's name and address and to the occupant's business when identifying an approved home occupation in accordance with section 4.3 of this ordinance.
2.
One identification sign for farm businesses or seasonal tourist attraction not to exceed 32 square feet per side, not exceeding a total of 64 square feet in area, and subject to mounting and setback requirements of this ordinance.
3.
One additional sign, 16 square feet per side, not to exceed 32 square feet total, shall be allowed for each zoning lot in the agriculture districts for the purpose of advertising permitted business practices in these districts. Content of the sign shall be limited to the business, commodity, services, or other activities on the premises, including, but not limited to, the sale of livestock or seed, and the promotion of farm products, such as milk and beef.
4.
Bulletin boards and identification signs for churches, schools, service clubs and other permitted institutions and organizations shall be allowed one sign a maximum of 32 square feet per side, not to exceed a total of 64 square feet in area.
5.
Signs for garage sales or the sale, rental, or lease, of land, lots, or houses, shall be permitted on the premises of the item being offered. Such a sign shall not exceed six square feet per side and shall not be permitted in the public right-of-way. one such sign is permitted for each road frontage on a given lot.
6.
Properties with more than 500 feet of road frontage may be permitted one sign for the sale, rental, or lease of land not to exceed 16 square feet in area.
7.
Signs accessory to parking areas designating parking area entrances or exits are limited to one sign per entrance or exit and shall not exceed three square feet in area. Such signs shall not project beyond the property line nor shall they project more than seven feet above street level. An off-street parking area may also include one sign limited to nine square feet which designates conditions for the use of the parking area.
8.
Crop identification signs, not to exceed six square feet per sign, shall be permitted without limit to number. The duration of these signs shall be limited to the growing season. These signs cannot be located in the public right-of-way.
9.
Temporary off-site directional signs for auctions and horse shows may be posted for up to 24 hours, provided that the signs are posted on private property and not in the public right-of-way and do not exceed six square feet per side for a maximum total of 12 square feet in area.
B.
In the agriculture districts, a permit is required for the following signs:
1.
Signs accessory to roadside stands not to exceed 32 square feet in size shall be permitted on lots with roadside stands for the purpose of identifying the stand and the products for sale. There shall not be more than one such sign on each side of the stand. No such sign shall project more than 15 feet above the ground.
2.
Subdivision identification signs for A-1 zoned subdivisions established prior to May 10, 1978 as delineated in section 5.6.5 of this ordinance.
3.
Off-site directional signs shall be permitted in the agriculture districts for seasonal or agricultural businesses and tourist attractions located in these districts, such as farm markets, orchards, greenhouses, antique shops, and bed and breakfasts. These signs are allowed with the intent of providing directional information beyond streets and roads typically listed on road maps. The content of their wording shall be limited to the name of the business or attraction, direction, and distance. Each business or attraction may be permitted a maximum of eight signs, and there shall be no more than two signs for the same attraction on the same side of a given road. Each sign shall be a rectangular shape and shall not exceed 12 square feet per side, for a total of 24 square feet. These signs shall not be placed within the public right-of-way, and shall not be subject to setback requirements, provided they are located no closer than 50 feet to an existing driveway or intersection. Each off-site directional sign shall be located at least 150 feet from another off-site directional sign. Signs for seasonal businesses shall be removed during off-season periods.
4.
Special event signs. Special event signs shall be permitted off-site in the agricultural districts for seasonal businesses, agricultural businesses, and tourist attractions located in said districts subject to the following:
a.
A temporary sign permit shall be obtained from the Boone County Building Department.
b.
Such special event signage shall be allowed for a maximum period of 14 calendar days. Businesses shall be allowed up to three special event permits in any one calendar year and shall not exceed three signs per event.
c.
Such signs shall not exceed 12 square feet per side and be limited to content to business name, special event, dates of special event, and address of the business, and direction to the buisiness.
d.
Such signage shall comply with all applicable building code requirements and shall not be subject to setback requirements, provided they are located no closer than 50 feet to an existing driveway or intersection.
e.
Such signage shall be limited to one sign per zoning lot and shall be located at least 150 feet from another sign.
A.
On-site signs are permitted three per business or industrial establishment. Total square footage of all signs shall not exceed the following number of square feet multiplied by the lineal feet of lot frontage:
When calculating sign area, the one side of a lot that abuts on the street that defines the business or industry address shall be considered the entire length of its frontage.
1.
No individual sign shall exceed one-half of the total sign area allowed.
2.
No individual sign shall exceed 200 square feet per face, for a maximum of 400 square feet in total area.
B.
All signs of 100 square feet or less shall be set back at least ten feet from the front property line. All signs larger than 100 square feet shall be setback 20 feet from the front property line.
C.
No sign may be higher than the height of the principal building on the zoning lot.
D.
Portable signs shall be allowed in business and industrial districts, not to exceed one per business. Portable signs shall be included in the allowable number of signs in these districts. A permit for a portable sign shall be required for a period not to exceed 90 days, at which time the permit shall either be renewed or the portable sign shall be removed.
E.
Signs for the sale, rental, or lease of land, lots or buildings shall be exempt on the premises of the item being offered. Such a sign shall not exceed 32 square feet per side and shall not be permitted in the public right-of-way. one such sign is permitted for each road frontage on a given lot. Additional signs would require a permit.
F.
Electronic message center requirements.
1.
Electronic message centers may be established only if approved as a special use in accordance with section 2.7 of this ordinance.
2.
Electronic message centers shall be directed away from adjacent residential uses.
3.
The images and messages displayed on an electronic message center shall have a minimum dwell time of at least ten seconds and may not contain any movement, animation, audio, video, pyrotechnic or other special effects.
4.
The transition of change from one message to another shall occur in one second or less and involve no animation or special effects.
5.
Electronic message centers shall be equipped with a default mechanism that freezes the display in one position or presents a static or blank display if a malfunction occurs.
6.
Electronic message centers shall be equipped with a light detector/photocell that automatically adjusts the display's brightness according to natural ambient light conditions.
7.
The maximum brightness level of an electronic message center may not exceed 5,000 nits (candelas per square meter) during daylight hours or 250 nits between 30 minutes after sunset and 30 minutes before sunrise, as those times are determined by the National Weather Service (Actual Time). Brightness shall be measured from the brightest element of the sign's face. Before the issuance of a sign permit, the applicant shall provide written certification from the sign manufacturer that the light intensity has been factory pre-set so that it will not exceed 5,000 nits (candelas per square meter).
8.
Electronic message centers shall comply with all Illinois Department of Transportation rules and regulations and all Boone County ordinances, rules, and regulations. Applications for electronic message centers shall include appropriate documentation from an Illinois licensed designed professional of the sign structure's ability to accommodate the electronic message center's technology.
9.
Light trespass from any electronic message center may not cause the light level along any residential zoning district, as measured at a height of 60 inches above grade in a place at any angel of inclination, to exceed 0.1 foot candles above ambient light levels at the residential property line.
(Ord. No. 15-19, § 1, 7-15-2015)
A.
With the exception of section 5.6.6.A.9, section 5.6.6.B.3, section 5.6.6.B.4, section 5.6.9, off-site signs shall be allowed in only the business and industrial districts.
B.
Off-site signs shall conform to the setback and total square footage requirements of business and industrial districts.
C.
No off-site sign shall be erected or relocated to be read or viewed from the toll highway.
D.
No off-site sign, when viewed from a public park of ten or more acres, shall be erected or relocated within 300 feet of such park.
E.
No off-site sign shall be permitted within 75 feet of any residential district boundary.
F.
The maximum square footage of all off-site signs shall not exceed 32 square feet per side, not to exceed a maximum of 64 square feet.
G.
No off-site sign shall be higher than the height of the principal building on the lot on which it is located nor higher than 30 feet, whichever is less.
H.
The informational content of an off-site sign shall be placed on one device only, and not continued to two or more.
I.
The company placing its off-site sign must do so by permission obtained from the property owner, or by properly leasing or owning such property.
J.
[Reserved.]
K.
Only one off-site sign per zoning lot is permitted.
Special event signs shall be permitted off-site in the A-1 district for seasonal businesses, agricultural businesses, and tourist attractions located within said district. Said signs shall be subject to the following:
A.
A temporary sign permit shall be obtained from the Boone County Building Department.
B.
Such special event signage shall be allowed for a maximum period of 14 calendar days. Businesses shall be allowed up to three special event permits in any one calendar year and shall not exceed three signs per event.
C.
Such signs shall not exceed 12 square feet per side and be limited to content to business name, special event, dates of special event, and address of the business.
D.
Such signage shall comply with all applicable building code requirements and shall not be subject to setback requirements, provided they are located no closer than 50 feet to an existing driveway or intersection.
E.
Such signage shall be limited to one sign per zoning lot and shall be located at least 150 feet from another sign.
A.
Application for a sign permit shall be made in writing upon forms furnished by the zoning enforcement officer. Such application shall contain the location of the proposed sign as well as the name and address of the owner of the property and the sign contractor or erector. The zoning enforcement officer may require the filing of plans or other pertinent information such as the method of construction, the method of installation or support, etc.
B.
Before a permit is issued, the applicant shall submit a copy of the contract showing his right to maintain the device on the property for a length of time not to exceed that approved by the zoning enforcement officer.
Temporary signs not exceeding 32 square feet in area indicating an event of public interest such as a state or county fair, public or general election, horse show, or other signs of a civic, political or religious nature may be erected, hung, placed, or painted upon securing a permit at no cost from the zoning enforcement officer, provided that such signs shall not interfere with the full view of traffic in all directions. Such signs shall be placed no sooner than 60 days prior to the event and shall be removed not more than ten days after the event. Signs indicating a political or religious event shall not be subject to setback requirements.
Every permit for an advertising device shall require the removal of said device within 60 days upon notice by the zoning enforcement officer that the land upon which device is located has been platted or divided for residential use, or lies within 500 feet of a property line of any church, school, hospital, or similar public or semi-public property which is built. The zoning enforcement officer may order the removal of any sign that is not maintained in accordance with the provisions of this section.
A.
Any sign that is legally nonconforming as to type, location, zoning district, size, setback or for any other reason (except those signs that are related to and located on the same premises as a separate legal nonconforming use recognized under this ordinance) shall be brought into compliance with this sign ordinance when either a new face is to be introduced or a new structure is to be constructed.
B.
All illegal nonconforming signs shall be brought into compliance with the Boone County Zoning Ordinance.
A sign permit fee shall be charged in accordance with the fee schedule adopted by the Boone County Board.