2 Residential Districts
Table 2.2.020 identifies the land uses and building types that are allowed in the Residential Districts. The specific land use categories are described and uses are defined, respectively, in Articles 1 and 6.
| Table 2.2.020– Land Uses and Building Types Allowed in Residential Districts | ||||
| Land Uses and Building Types | Land Use Districts | Special Use Provisions | ||
(Uses & building types in Chapter 1.3; definitions in Chapter 6.1) | RL | RM | RH | |
| Residential Categories | ||||
| Household Living | ||||
| Single Family House | P | P | P | |
Accessory Dwelling Unit | S | S | S | Section 2.2.120A |
Duplex (2 dwelling units sharing a common wall on one lot) Attached House (2 dwelling units sharing a common wall with each unit on its own lot) | P P | P P | P P | |
Attached House (3 or more common-wall dwelling |
N |
S | S |
Section 2.2.120B |
Cottage Cluster (2-8 single family dwellings on one | S | S | S | Section 2.2.120H |
Manufactured Home on a Lot | S | S | N | Section 2.2.120F |
Manufactured Dwelling Park - Equal to or less than 3 acres - Greater than 3 acres | N N | S N | S S | Chapter 2.9 |
Modular Home on a lot | S | S | S | Section 2.2.120M |
Multi-family (3 or more dwellings on a lot; Includes | N | S | S | Section 2.2.120H |
Zero Lot Line Courtyard Housing (not common | N | S | S | Section 2.2.120J |
Group Living | ||||
Residential Home | S | S | N | Section 2.2.120D |
Residential Facility | CU + S | S | S | Section 2.2.120D |
Commercial Categories | ||||
Drive-Up/Drive-In/Drive-Through (drive-up | N | N | CU + S | Section 2.3.100 |
Bed and Breakfast Inn | CU + S | CU + S | CU + S | Section 2.2.120C |
Educational Services, Commercial (e.g., tutoring or | N | CU + S | CU + S | Limited to 1,200 square feet of floor area |
Entertainment, Major Event | N | N | N | |
Home Occupation | S | S | S | Per standards of Section 2.2.120E and procedures in Chapter 4.9 |
Office, not a home occupation; fully enclosed in | N | CU + S | CU + S | Limited to 1,200 square feet of floor area |
Outdoor Recreation, Commercial | N | N | N | |
Commercial Parking | CU | CU | CU | |
Quick Vehicle Servicing or Vehicle Repair | N | N | N | |
Recreational Vehicle Park | N | N | N | |
Retail Sales and Service | N | N | N | |
Self-Service Storage, when not accessory to a | N | N | CU | |
Short-Term Vacation Rental, primary dwelling or | CU + S | CU + S | N | Section 2.2.120I |
Industrial Categories | ||||
Industrial Service, enclosed in primary building | N | N | N | |
Manufacturing and Production, fully enclosed in Warehouse and Freight Movement | N
| N
| N
| |
Waste-Related when not accessory to a primary |
|
|
| |
Wholesale Sales when accessory to a primary | N | N | N | |
Institutional Categories | ||||
Basic Utilities when not accessory to a primary | CU | CU | CU | Wireless Communication Facilities Subject to CU |
Community Service; Government, except drive-up | CU | CU | CU | |
Daycare, adult or child care; Family Childcare (16 or fewer children) | CU + S
| CU + S
| CU + S
| Provide City with evidence of compliance with ORS 329A.250 and 329A.440(4) |
Medical Centers | N | N | N | |
Incarceration Facilities | N | N | N | |
Parks, Open Space, and Common Areas | P | P | P | |
Religious Institution, House of Worship | CU | CU | CU | Conditional Use Permit required, except where City codes preempted by Federal or State law |
Schools | P/CU | P/CU | P/CU | Permitted (P) when part of a Master Plan; otherwise CU |
Park and Ride | N | P/CU | P/CU | Permitted (P) when part of a Master Plan; otherwise CU |
Accessory Structures, total of all accessory - Not taller than 15 ft. and not wider than 50% of - Taller than 15 ft. or wider than 50% of width of |
|
|
| |
Agriculture | N | N | N |
|
| ||||
Mining | N | N | N | |
Wireless Communication Facilities, Wind | N | N | N | Ham and Similar Amateur Radio exempt when height limits are met |
Utility Corridors (e.g., regional gas pipelines, | CU | CU | CU | |
Temporary Uses | P/CU | Temporary uses subject to Section 4.9.010 | ||
Transportation Facilities (operation, maintenance, preservation, and construction in accordance with applicable standards of the roadway authority) are Permitted; other Transportation Facilities require Conditional Use Permit and are subject to review and approval by the applicable roadway authority. | ||||
Non-Conforming Uses. Uses and structures lawfully established prior to January 22, 2010 may continue pursuant to Chapter 5.2 Non-Conforming Situations. The City may require upon annexation rezoning that uses conform to the current code requirements for the zone in which they are located. | ||||
Uses Subject to Preemptive State or Federal Law are allowed pursuant to applicable laws | ||||
The development standards in Table 2.2.030 apply to all uses, structures, buildings, and development, and major remodels, in the Residential Districts.
Table 2.2.030– Development Standards for Residential Districts | ||||
Standard | Land Use Districts | |||
RL | RM | RH | ||
A) | Minimum and Maximum Residential Density (Dwelling units per net buildable acre after subtracting required right-of-way. Does not apply to partitions of 3 or fewer lots and to conversion of existing detached single-family houses to duplex.) All residential zones are subject to Housing Density standards in Section 2.2.050. |
|
|
|
B) | Minimum Average Lot Area* |
|
|
|
C) | Minimum Lot Width/Depth (feet), per minimum lot size, density, setbacks, and lot coverage |
|
|
|
| D) | Building/Structure Height | 28 ft 15 ft + 5 ft | 40 ft 15 ft + 8 ft | 48 ft 15 ft + 8 ft |
E) | Lot Coverage (Impervious Surfaces): | 50% | 65% | 75% |
F) | Min. Open Space Area (% site area); except does not apply to Single Family House, Attached House, or duplex dwelling lots, only the subdivision as a whole. Where a subdivision site does not contain suitable land for open space, the City may accept a fee equal to 6% of the site's Real Market Value, per the current Assessor's file, in lieu of open space. The landscaped portion of common area or green roof, when approved by Planning Official, may count toward meeting landscape area requirement under Section 3.2.030.D. | 6% per | 6% per | 15% |
G) | Minimum Setbacks (feet), except as otherwise required for Clear Vision areas and per Section 3.2.050, Fences and Walls. Other standards may preclude building at a minimum setback. Structures shall not encroach into easements for utilities, access ways, etc. See also, Clear Vision Area requirements and special setbacks for planned street improvements, respectively, in Chapter 3.2 and Chapter 3.4. | |||
G.1) | Front/Street Side Yard, Primary Structures, Fronting Local Street with Standard ROW | 15 ft | 12 ft | 12 ft |
G.2) | Front Yards and Street Side Yards, Primary Structures, Fronting a Collector or Arterial Street with Standard ROW | 20 ft | 20 ft | 20 ft |
G.3) | Front Yards and Street Side Yards, Primary Structures, Fronting Any Street Without Standard ROW (measured from designated street centerline) | 1/2 - width standard ROW, plus setback | ||
G.4) | Garage or Carport Opening Facing a Street | 20 ft | 20 ft | 20 ft |
G.5) | Front/Street Side Yard, Accessory Structures | Where an accessory structure is visible from a street, it shall be set back behind the front/side building elevation adjacent to the subject street. The street side yard setback for an accessory structure may be reduced to 5 ft, if the structure is screened with a 6 ft high sight-obscuring fence, wall or hedge. | ||
G.6) | Interior Side Yards, Primary Structure, Not Abutting Alley. Note additional setbacks may be required pursuant to building codes and other Development Code provisions. | 5 ft | 3 ft | 3 ft |
G.7) | Interior Side Yards, where common wall or zero-lot line is allowed. See also, | 0 ft | 0 ft | 0 ft |
G.8) | Interior Side Yard, Accessory Structure | Accessory Dwelling: 3 ft Other Structures: No setback for structures up to 15 ft in height; Taller structures shall conform to Primary Structure setbacks | ||
G.9) | Yard Abutting Alley; Allowed Only Where Alley is Improved to City Standards | 3 ft | 3 ft | 3 ft |
G.10) | RM or RH Yard Abutting RL Yard | 10 ft | 10 ft | 15 ft |
G.11) | Parking Lot (e.g., multi-family, commercial, or institutional use) abutting RL District; see Chapter 3.2 Landscaping | 10 ft | 10 ft | 10 ft |
G.12) | Rear Yard, Primary Structure | 10 ft | 10 ft | 15 ft |
G.13) | Rear Yard, Accessory Structure | Accessory Dwelling: 3 ft Other Structures: No setback for structures up to 15 ft in height; Taller structures shall conform to Primary Structure setbacks | ||
G.14) | Reduced Setback for Covered Front Porch | 8 ft Reduction in front and street side setbacks allowed where structure does not conflict with any easement | ||
G.15) | Special Setback for Development on Oversized Lot | Where a lot is more than twice the minimum lot size of the zone, the dwelling shall be placed to allow for future land division in accordance with the minimum dimensional standards of this Chapter and requirements of the Land Division criteria of Chapter 4.3. | ||
*The above density standards under A and B, are applicable in review of new housing development applications. In accordance with OAR 660-046-0120(2), maximum density does not apply to the development of duplexes. Also, in accordance with OAR 660-046-0130, conversion of existing detached single-family housing dwellings to duplex are allowed and subject to the above, provided that the conversion does not increase nonconformity with the applicable development standards for building height, lot coverage and setbacks as contained in Article 2.
The maximum allowable lot coverage shall be as provided in Table 2.2.030. The purpose of the lot coverage standard is to provide flexibility in development design while encouraging developments that minimize stormwater runoff and incorporate water quality treatment. Therefore, lot coverage is calculated as the percentage of a lot or parcel covered by impervious surfaces (e.g., asphalt, concrete, and similar non-porous paving). It does not include areas that function as water quality treatment facilities and those allowing infiltration of treated surface water; such exempt areas may include porous paving systems, swales, landscape areas and other water quality treatment facilities conforming to City standards and as approved by the Public Works Director.
Figure 2.2.070.C(3) – Commercial Building Orientation in a Residential District
| Criteria | Points |
| a) At least 10% of lots in the project are at least 20% smaller than the project's median lot size** | 3 |
| b) At least 20% of the lots in the project are at least 20% smaller than the project's median lot size | 6 |
| c) At least 30% of the lots in the project are at least 20% smaller than the project's median lot size* | 9 |
| Criteria | Points |
| a) At least 10% of the lots in the project are reserved for "small houses"* | 3 |
| b) At least 20% of the lots in the project are reserved for "small houses"* | 6 |
| c) At least 30% of the lots in the project are reserved for "small houses"* | 9 |
| Criteria | Points |
| a) At least 15% of the dwelling units in the project reserved for qualifying buyers or renters with incomes at or below Polk County area median income.* | 6 |
| b) At least 20% of the dwelling units in the project reserved for qualifying buyers or renters with incomes at or below Polk County area median income.* | 3 |
| c) At least 25% of the dwelling units in the project reserved for qualifying buyers or renters with incomes at or below Polk County area median income.* | 9 |
| Criteria | Points |
| a) At least 10% of the lots in the project are reserved for duplexes, attached houses, or detached single-family houses with accessory dwelling units.* | 3 |
| b) At least 20% of the lots in the project are attached houses, or accessory dwelling units.* | 6 |
| c) At least 35% of the lots in the project are reserved for duplexes, attached houses, or accessory dwelling units.* | 9 |
| d) More than 50% of the lots in the project are reserved for duplexes, attached houses, or accessory dwelling units.* | 12 |
[This section deleted, reserved for future use]
A. Purpose. Establish clear and objective standards for building design in Residential Districts to promote land use compatibility and livability while protecting property values and ensuring predictability in the development process. The intent is to:
1. Reinforce Dallas’ sense of place and respect the local architectural vernacular of Dallas. 2. Reduce the visual dominance of garage openings as viewed from abutting streets, parks, and other public use areas 3. Encourage a diversity of building facades and rooflines at an appropriate neighborhood scale. 4. Promote compatible building-to-building relationships, and to create a sense of street enclosure at a pedestrian-scale in urban neighborhoods.
B. Applicability. Section 2.2.100 applies to all new dwelling types, including multi-dwelling buildings, single family house, attached house (townhome), duplexes, and cottage cluster developments. The standards are applied through building plan review for single family house dwellings or duplexes, and Site Design Review and/or Planned Unit Development Review, as applicable, for other building types. In addition, other building design standards may apply for certain types of land use and development, as provided under Section 2.2.120 Special Use Standards. The standards of Section 2.2.100 may be adjusted through the Adjustment (Type II) procedure provided the Adjustment is consistent with the above purpose and the applicant demonstrates that the proposed design meets the intent of the standard for which an Adjustment is sought.
C. Standards
1. Garage Orientation and Design.
| Lot frontage | Driveway width |
| <55’ | 22' |
| 55’-70’ | 26' |
| >70’ | 32' |
2. Front/Street Facade Variation.
a. Purpose. The following requirements for façade variation promote variety in housing design to improve the appearance and aesthetics of new subdivisions and multifamily developments. The standards are intended to promote architecturally varied neighborhoods, avoiding homogeneous street frontages that detract from a neighborhood’s appearance. b. Standards. No two directly adjacent or opposite dwelling units may possess the same front or street-facing elevation. This standard is met when front or street-facing elevations differ from one another by at least 5 of the 8 following elements: 1) Mix of Materials – Different mix of materials in compliance with subsection 2e below. 2) Articulation – Different offsets or articulation of front building elevation in compliance with subsection 3 below. 3) Variation in Roof Elevation – Different roof form or changes in roof elevation and orientation of roof line (e.g., cross-gable) or use of projections such as gables and dormers over at least ten percent (10%) of roof elevation. 4) Entry/Porch – Different configuration or design of front porch or covered primary entrance. 5) Fenestration – Different placement or pattern of windows and doors (must comprise at least 30 percent of front/street facing elevation). 6) Architectural Style – Different architectural style, provided such styles borrow from the vocabulary of at least one of the following: Craftsman, Prairie, Four Square, Northwest Contemporary, Ranch, Victorian, Colonial, English Arts and Crafts, or other Dallas Style as determined by the Planning Official (traditional or contemporary adaptations are acceptable). 7) Height – Change in elevation of primary roof line (along the axis of the longest roofline) by not less than two (2) feet; requires variation from building to building, or dwelling unit to dwelling unit (e.g., townhome units), as applicable. 8) Color Palette – Complementary variation in color palette; no metallic, day-glow, or similar loud, bright colors. c. Repeated facades. Buildings not differentiated by at least 5 of the criteria listed above shall be considered a group of similar buildings for purpose of this subsection; individually such groups shall not comprise more than 25% of the dwelling units on any block. No single façade shall repeat more than once on the same block face. See Standards for façade variation under subsection 2.2.100.C.2.b. d. Neighborhood variety. When facades repeat on the same block face, they must have at least three intervening lots between them that meet the façade variation criteria. On any one block face, a mirrored façade (one that repeats but appears reversed as in a mirror) may count as two separate facades only once, so long as there is at least one intervening lot containing a different façade between the mirrored facades. e. Mix of materials. When a mix of building materials is selected to satisfy the façade variation standards of this Section, the following materials (i.e., when used in combination) meet the standard: wood or wood fiber cement (lap, panel, board and batten, timber, shingle or similar siding), brick, stucco, stone and/or similar masonry. See illustrations below for suggested ways to mix building materials. For example, stone, heavy timbers, or brick may be used as detailing material in combination with different siding materials to meet the standard. Stone or brick may be incorporated in the facade in several ways, such as on the whole facade, trim, wainscoting, or on a partial building story. Varying dimensions or spacing of siding and detailing may be used to create an appropriate building scale. For example, use of heavy timbers, or closer spacing or smaller dimensions of lap siding may be used around building entrances, dormers, gables and other elements, to accent those elements, while applying wider spacing or larger dimensions elsewhere. f. Façade Includes Building Corners. The material(s) used on the front facade must turn the corner and appear on at least a portion of the side elevations; at least some of the same combinations of materials used on the front façade must be used on the sides and rear of the house; however, the same patterns and proportions of materials used on the front façade need not be used on the sides and rear elevations.
Examples of Ways to Mix Building Materials on any one Structure

g. Duplex Attachment Options. Duplexes and Attached Houses shall share a common wall or common floor/ceiling, consistent with attachment options described in the figures below.
Examples of Duplex Structure Attachment Options
Duplex Side-by-Side Attached Duplex Attached by Garage Duplex Stacked
3. Articulation When the front, side, or rear elevation of any residential structure is more than 500 square feet in area, that elevation must be divided into distinct planes of not more than 500 square feet. For the purpose of this standard, areas of wall planes that are entirely separated from other wall planes are those that are separated by windows or doors, or by a recess or projecting section of the structure that projects or recedes at least one (1) foot from the adjacent plane, for a length of at least six (6) feet. Building offsets, bellybands, bays, dormers, porch canopies and other secondary roof forms are examples of acceptable changes in plane. The vertical mass of buildings shall be broken up through the use of architectural features such as horizontal cornices, pediments, beltcourses, canopies (e.g., covered porches) and/or bellybands at least 12” in width across the length of the elevation. Roofs must provide offsets or breaks in roof line, with at least one break of at least one (1) foot for every ninety (90) lineal feet of roof line. Roof offsets, cross gables, and similar interruptions are examples of acceptable breaks in roofline on sloped roofs. On flat roofs, stepped parapets or cornices proportioned to the building elevation may be used to meet this standard.
Building and structure heights shall conform to the standards in Table 2.2.030A. Additional height may be approved for mixed-use buildings through the Master Planned Development procedure and pursuant to the density bonus provisions of Section 2.2.090 Low-Impact Development.
Section 2.2.120 provides standards for the land uses and building types identified as Special Uses (‘S’) in Table 2.2.020A. The standards are intended to control the scale and compatibility of those uses within the Residential District. The standards in Section 2.2.120 are in addition to and do not replace the general development standards in Section 2.2.030A. This Section applies to the following uses and building types:
A. Accessory Dwelling
B. Attached Single Family Dwellings (Townhomes)
C. Bed and Breakfast Inns
D. Group Living (Residential Homes and Residential Facilities)
E. Home Occupations
F. Manufactured Homes on Individual Lots
G. Manufactured Dwelling Parks
H. Multiple Family Housing
I. Short-Term Vacation Rentals
J. Zero-Lot Line Housing (not common wall)
K. Temporary Medical Hardship Dwellings
L. Agricultural Uses in Residential Zones
M. Modular Home Special Use Standards
Accessory Dwelling Unit (attached, separate cottage, or above detached garage). Accessory dwelling units shall conform to all of the following standards:
Attached House (Townhome) Dwellings of three or more units. Attached House (townhome or rowhouse) dwellings shall comply with the standards in sub-sections 1 and 2, below, which are intended to control development scale; avoid or minimize impacts associated with traffic, parking, and design compatibility; and ensure management and maintenance of any common areas.
Bed and Breakfast Inns. Where Bed and Breakfast Inns are allowed in the Residential District, they shall comply with all of the following standards. (See also, Vacation Rentals, which are different than Bed and Breakfast Inns, under Section 2.2.120.I).
Group Living (Residential Homes and Residential Facilities). “Residential Home” is a residential treatment or training or adult foster home licensed by or under the authority of the department, as defined in ORS 443.400, under ORS 443.400 to 443.825, a residential facility registered under ORS 443.480 to 443.500 or an adult foster home licensed under ORS 443.705 to 443.825 that provides residential care alone or in conjunction with treatment or training or a combination thereof for five (5) or fewer individuals who need not be related. (See also, ORS 197.660.). “Residential Facility” is defined under ORS 430.010 (for alcohol and drug abuse programs); ORS 443.400 (for persons with disabilities); and ORS 443.880; residential facilities provide housing and care for 6 to 15 individuals (“facilities”) who need not be related. Staff persons required to meet State-licensing requirements is not counted in the number of facility residents and need not be related to each other or the residents. Residential homes and residential facilities shall comply with the following requirements unless otherwise preempted by State or Federal law:
Home Occupations. The purpose of this Section is to encourage those who are engaged in small commercial ventures that could not necessarily be sustained if it were necessary to lease commercial quarters, or which by the nature of the venture, are appropriate in scale and impact to be operated within a residence. Home occupations are encouraged for their contribution in reducing the number of vehicle trips often generated by conventional businesses. Two types of home occupations are allowed by this Code:
Type I Standards for Home Occupations:
Manufactured Homes on Individual Lots. Manufactured homes are permitted on individual lots, subject to all of the following design standards. Exceptions: 1) The standards in subsection 1-8, below, do not apply to units that lawfully existed within the City prior to [effective date of code]; except that when a unit is removed and/or relocated to another lot or parcel, then its replacement shall conform to Section 2.2.120F; New or replacement units in a manufactured home park need not conform to subsections 1-8, but changes or additions to non-conforming manufactured home parks shall conform to Chapter 5.2.
Manufactured/Mobile Home Parks. Manufactured Dwelling Parks shall conform to the provisions of Chapter 2.9.
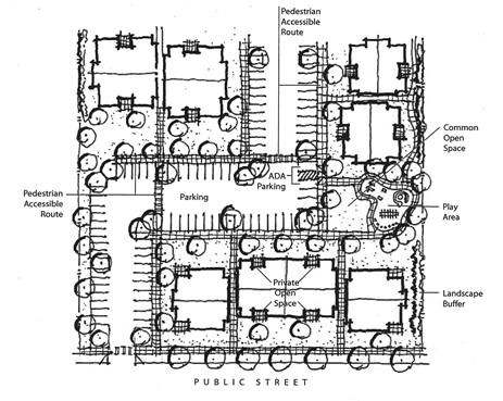
Multi-Family Housing (including Cottage Cluster Housing). Where multi-family housing is allowed, it shall conform to all of the following standards, which are intended to promote livability for residents and compatibility with nearby uses. The standards of subsection 2.2.120.H may be adjusted through Site Design Review pursuant to Chapter 4.1. Figure 2.2.120.H provides a conceptual illustration of the requirements listed below.
Short-Term Vacation Rentals. Where short-term vacation rentals are allowed, they shall conform to all of the following criteria:
Zero-Lot Line Housing. Zero-lot line houses are subject to the same standards as other non-attached single-family housing, except that a side yard setback is not required on one side of the lot. The standards for zero-lot line housing are intended to ensure adequate outdoor living area, compatibility between adjacent buildings, and access to side yards for building maintenance. All zero-lot line houses shall conform to all of the criteria in subsections 1-4, below:
Temporary Medical Hardship Dwellings.
Agricultural Uses.
Modular Home Special Use Standards.
Modular Homes on Individual Lots. Modular homes are permitted on individual lots, subject to all of the following design standards. Exceptions: 1) The standards below do not apply to units that lawfully existed within the City prior to January 19, 2016; except that when a unit is removed and/or relocated to another lot or parcel, then its replacement shall conform to the standards listed below.
2 Residential Districts
Table 2.2.020 identifies the land uses and building types that are allowed in the Residential Districts. The specific land use categories are described and uses are defined, respectively, in Articles 1 and 6.
| Table 2.2.020– Land Uses and Building Types Allowed in Residential Districts | ||||
| Land Uses and Building Types | Land Use Districts | Special Use Provisions | ||
(Uses & building types in Chapter 1.3; definitions in Chapter 6.1) | RL | RM | RH | |
| Residential Categories | ||||
| Household Living | ||||
| Single Family House | P | P | P | |
Accessory Dwelling Unit | S | S | S | Section 2.2.120A |
Duplex (2 dwelling units sharing a common wall on one lot) Attached House (2 dwelling units sharing a common wall with each unit on its own lot) | P P | P P | P P | |
Attached House (3 or more common-wall dwelling |
N |
S | S |
Section 2.2.120B |
Cottage Cluster (2-8 single family dwellings on one | S | S | S | Section 2.2.120H |
Manufactured Home on a Lot | S | S | N | Section 2.2.120F |
Manufactured Dwelling Park - Equal to or less than 3 acres - Greater than 3 acres | N N | S N | S S | Chapter 2.9 |
Modular Home on a lot | S | S | S | Section 2.2.120M |
Multi-family (3 or more dwellings on a lot; Includes | N | S | S | Section 2.2.120H |
Zero Lot Line Courtyard Housing (not common | N | S | S | Section 2.2.120J |
Group Living | ||||
Residential Home | S | S | N | Section 2.2.120D |
Residential Facility | CU + S | S | S | Section 2.2.120D |
Commercial Categories | ||||
Drive-Up/Drive-In/Drive-Through (drive-up | N | N | CU + S | Section 2.3.100 |
Bed and Breakfast Inn | CU + S | CU + S | CU + S | Section 2.2.120C |
Educational Services, Commercial (e.g., tutoring or | N | CU + S | CU + S | Limited to 1,200 square feet of floor area |
Entertainment, Major Event | N | N | N | |
Home Occupation | S | S | S | Per standards of Section 2.2.120E and procedures in Chapter 4.9 |
Office, not a home occupation; fully enclosed in | N | CU + S | CU + S | Limited to 1,200 square feet of floor area |
Outdoor Recreation, Commercial | N | N | N | |
Commercial Parking | CU | CU | CU | |
Quick Vehicle Servicing or Vehicle Repair | N | N | N | |
Recreational Vehicle Park | N | N | N | |
Retail Sales and Service | N | N | N | |
Self-Service Storage, when not accessory to a | N | N | CU | |
Short-Term Vacation Rental, primary dwelling or | CU + S | CU + S | N | Section 2.2.120I |
Industrial Categories | ||||
Industrial Service, enclosed in primary building | N | N | N | |
Manufacturing and Production, fully enclosed in Warehouse and Freight Movement | N
| N
| N
| |
Waste-Related when not accessory to a primary |
|
|
| |
Wholesale Sales when accessory to a primary | N | N | N | |
Institutional Categories | ||||
Basic Utilities when not accessory to a primary | CU | CU | CU | Wireless Communication Facilities Subject to CU |
Community Service; Government, except drive-up | CU | CU | CU | |
Daycare, adult or child care; Family Childcare (16 or fewer children) | CU + S
| CU + S
| CU + S
| Provide City with evidence of compliance with ORS 329A.250 and 329A.440(4) |
Medical Centers | N | N | N | |
Incarceration Facilities | N | N | N | |
Parks, Open Space, and Common Areas | P | P | P | |
Religious Institution, House of Worship | CU | CU | CU | Conditional Use Permit required, except where City codes preempted by Federal or State law |
Schools | P/CU | P/CU | P/CU | Permitted (P) when part of a Master Plan; otherwise CU |
Park and Ride | N | P/CU | P/CU | Permitted (P) when part of a Master Plan; otherwise CU |
Accessory Structures, total of all accessory - Not taller than 15 ft. and not wider than 50% of - Taller than 15 ft. or wider than 50% of width of |
|
|
| |
Agriculture | N | N | N |
|
| ||||
Mining | N | N | N | |
Wireless Communication Facilities, Wind | N | N | N | Ham and Similar Amateur Radio exempt when height limits are met |
Utility Corridors (e.g., regional gas pipelines, | CU | CU | CU | |
Temporary Uses | P/CU | Temporary uses subject to Section 4.9.010 | ||
Transportation Facilities (operation, maintenance, preservation, and construction in accordance with applicable standards of the roadway authority) are Permitted; other Transportation Facilities require Conditional Use Permit and are subject to review and approval by the applicable roadway authority. | ||||
Non-Conforming Uses. Uses and structures lawfully established prior to January 22, 2010 may continue pursuant to Chapter 5.2 Non-Conforming Situations. The City may require upon annexation rezoning that uses conform to the current code requirements for the zone in which they are located. | ||||
Uses Subject to Preemptive State or Federal Law are allowed pursuant to applicable laws | ||||
The development standards in Table 2.2.030 apply to all uses, structures, buildings, and development, and major remodels, in the Residential Districts.
Table 2.2.030– Development Standards for Residential Districts | ||||
Standard | Land Use Districts | |||
RL | RM | RH | ||
A) | Minimum and Maximum Residential Density (Dwelling units per net buildable acre after subtracting required right-of-way. Does not apply to partitions of 3 or fewer lots and to conversion of existing detached single-family houses to duplex.) All residential zones are subject to Housing Density standards in Section 2.2.050. |
|
|
|
B) | Minimum Average Lot Area* |
|
|
|
C) | Minimum Lot Width/Depth (feet), per minimum lot size, density, setbacks, and lot coverage |
|
|
|
| D) | Building/Structure Height | 28 ft 15 ft + 5 ft | 40 ft 15 ft + 8 ft | 48 ft 15 ft + 8 ft |
E) | Lot Coverage (Impervious Surfaces): | 50% | 65% | 75% |
F) | Min. Open Space Area (% site area); except does not apply to Single Family House, Attached House, or duplex dwelling lots, only the subdivision as a whole. Where a subdivision site does not contain suitable land for open space, the City may accept a fee equal to 6% of the site's Real Market Value, per the current Assessor's file, in lieu of open space. The landscaped portion of common area or green roof, when approved by Planning Official, may count toward meeting landscape area requirement under Section 3.2.030.D. | 6% per | 6% per | 15% |
G) | Minimum Setbacks (feet), except as otherwise required for Clear Vision areas and per Section 3.2.050, Fences and Walls. Other standards may preclude building at a minimum setback. Structures shall not encroach into easements for utilities, access ways, etc. See also, Clear Vision Area requirements and special setbacks for planned street improvements, respectively, in Chapter 3.2 and Chapter 3.4. | |||
G.1) | Front/Street Side Yard, Primary Structures, Fronting Local Street with Standard ROW | 15 ft | 12 ft | 12 ft |
G.2) | Front Yards and Street Side Yards, Primary Structures, Fronting a Collector or Arterial Street with Standard ROW | 20 ft | 20 ft | 20 ft |
G.3) | Front Yards and Street Side Yards, Primary Structures, Fronting Any Street Without Standard ROW (measured from designated street centerline) | 1/2 - width standard ROW, plus setback | ||
G.4) | Garage or Carport Opening Facing a Street | 20 ft | 20 ft | 20 ft |
G.5) | Front/Street Side Yard, Accessory Structures | Where an accessory structure is visible from a street, it shall be set back behind the front/side building elevation adjacent to the subject street. The street side yard setback for an accessory structure may be reduced to 5 ft, if the structure is screened with a 6 ft high sight-obscuring fence, wall or hedge. | ||
G.6) | Interior Side Yards, Primary Structure, Not Abutting Alley. Note additional setbacks may be required pursuant to building codes and other Development Code provisions. | 5 ft | 3 ft | 3 ft |
G.7) | Interior Side Yards, where common wall or zero-lot line is allowed. See also, | 0 ft | 0 ft | 0 ft |
G.8) | Interior Side Yard, Accessory Structure | Accessory Dwelling: 3 ft Other Structures: No setback for structures up to 15 ft in height; Taller structures shall conform to Primary Structure setbacks | ||
G.9) | Yard Abutting Alley; Allowed Only Where Alley is Improved to City Standards | 3 ft | 3 ft | 3 ft |
G.10) | RM or RH Yard Abutting RL Yard | 10 ft | 10 ft | 15 ft |
G.11) | Parking Lot (e.g., multi-family, commercial, or institutional use) abutting RL District; see Chapter 3.2 Landscaping | 10 ft | 10 ft | 10 ft |
G.12) | Rear Yard, Primary Structure | 10 ft | 10 ft | 15 ft |
G.13) | Rear Yard, Accessory Structure | Accessory Dwelling: 3 ft Other Structures: No setback for structures up to 15 ft in height; Taller structures shall conform to Primary Structure setbacks | ||
G.14) | Reduced Setback for Covered Front Porch | 8 ft Reduction in front and street side setbacks allowed where structure does not conflict with any easement | ||
G.15) | Special Setback for Development on Oversized Lot | Where a lot is more than twice the minimum lot size of the zone, the dwelling shall be placed to allow for future land division in accordance with the minimum dimensional standards of this Chapter and requirements of the Land Division criteria of Chapter 4.3. | ||
*The above density standards under A and B, are applicable in review of new housing development applications. In accordance with OAR 660-046-0120(2), maximum density does not apply to the development of duplexes. Also, in accordance with OAR 660-046-0130, conversion of existing detached single-family housing dwellings to duplex are allowed and subject to the above, provided that the conversion does not increase nonconformity with the applicable development standards for building height, lot coverage and setbacks as contained in Article 2.
The maximum allowable lot coverage shall be as provided in Table 2.2.030. The purpose of the lot coverage standard is to provide flexibility in development design while encouraging developments that minimize stormwater runoff and incorporate water quality treatment. Therefore, lot coverage is calculated as the percentage of a lot or parcel covered by impervious surfaces (e.g., asphalt, concrete, and similar non-porous paving). It does not include areas that function as water quality treatment facilities and those allowing infiltration of treated surface water; such exempt areas may include porous paving systems, swales, landscape areas and other water quality treatment facilities conforming to City standards and as approved by the Public Works Director.
Figure 2.2.070.C(3) – Commercial Building Orientation in a Residential District
| Criteria | Points |
| a) At least 10% of lots in the project are at least 20% smaller than the project's median lot size** | 3 |
| b) At least 20% of the lots in the project are at least 20% smaller than the project's median lot size | 6 |
| c) At least 30% of the lots in the project are at least 20% smaller than the project's median lot size* | 9 |
| Criteria | Points |
| a) At least 10% of the lots in the project are reserved for "small houses"* | 3 |
| b) At least 20% of the lots in the project are reserved for "small houses"* | 6 |
| c) At least 30% of the lots in the project are reserved for "small houses"* | 9 |
| Criteria | Points |
| a) At least 15% of the dwelling units in the project reserved for qualifying buyers or renters with incomes at or below Polk County area median income.* | 6 |
| b) At least 20% of the dwelling units in the project reserved for qualifying buyers or renters with incomes at or below Polk County area median income.* | 3 |
| c) At least 25% of the dwelling units in the project reserved for qualifying buyers or renters with incomes at or below Polk County area median income.* | 9 |
| Criteria | Points |
| a) At least 10% of the lots in the project are reserved for duplexes, attached houses, or detached single-family houses with accessory dwelling units.* | 3 |
| b) At least 20% of the lots in the project are attached houses, or accessory dwelling units.* | 6 |
| c) At least 35% of the lots in the project are reserved for duplexes, attached houses, or accessory dwelling units.* | 9 |
| d) More than 50% of the lots in the project are reserved for duplexes, attached houses, or accessory dwelling units.* | 12 |
[This section deleted, reserved for future use]
A. Purpose. Establish clear and objective standards for building design in Residential Districts to promote land use compatibility and livability while protecting property values and ensuring predictability in the development process. The intent is to:
1. Reinforce Dallas’ sense of place and respect the local architectural vernacular of Dallas. 2. Reduce the visual dominance of garage openings as viewed from abutting streets, parks, and other public use areas 3. Encourage a diversity of building facades and rooflines at an appropriate neighborhood scale. 4. Promote compatible building-to-building relationships, and to create a sense of street enclosure at a pedestrian-scale in urban neighborhoods.
B. Applicability. Section 2.2.100 applies to all new dwelling types, including multi-dwelling buildings, single family house, attached house (townhome), duplexes, and cottage cluster developments. The standards are applied through building plan review for single family house dwellings or duplexes, and Site Design Review and/or Planned Unit Development Review, as applicable, for other building types. In addition, other building design standards may apply for certain types of land use and development, as provided under Section 2.2.120 Special Use Standards. The standards of Section 2.2.100 may be adjusted through the Adjustment (Type II) procedure provided the Adjustment is consistent with the above purpose and the applicant demonstrates that the proposed design meets the intent of the standard for which an Adjustment is sought.
C. Standards
1. Garage Orientation and Design.
| Lot frontage | Driveway width |
| <55’ | 22' |
| 55’-70’ | 26' |
| >70’ | 32' |
2. Front/Street Facade Variation.
a. Purpose. The following requirements for façade variation promote variety in housing design to improve the appearance and aesthetics of new subdivisions and multifamily developments. The standards are intended to promote architecturally varied neighborhoods, avoiding homogeneous street frontages that detract from a neighborhood’s appearance. b. Standards. No two directly adjacent or opposite dwelling units may possess the same front or street-facing elevation. This standard is met when front or street-facing elevations differ from one another by at least 5 of the 8 following elements: 1) Mix of Materials – Different mix of materials in compliance with subsection 2e below. 2) Articulation – Different offsets or articulation of front building elevation in compliance with subsection 3 below. 3) Variation in Roof Elevation – Different roof form or changes in roof elevation and orientation of roof line (e.g., cross-gable) or use of projections such as gables and dormers over at least ten percent (10%) of roof elevation. 4) Entry/Porch – Different configuration or design of front porch or covered primary entrance. 5) Fenestration – Different placement or pattern of windows and doors (must comprise at least 30 percent of front/street facing elevation). 6) Architectural Style – Different architectural style, provided such styles borrow from the vocabulary of at least one of the following: Craftsman, Prairie, Four Square, Northwest Contemporary, Ranch, Victorian, Colonial, English Arts and Crafts, or other Dallas Style as determined by the Planning Official (traditional or contemporary adaptations are acceptable). 7) Height – Change in elevation of primary roof line (along the axis of the longest roofline) by not less than two (2) feet; requires variation from building to building, or dwelling unit to dwelling unit (e.g., townhome units), as applicable. 8) Color Palette – Complementary variation in color palette; no metallic, day-glow, or similar loud, bright colors. c. Repeated facades. Buildings not differentiated by at least 5 of the criteria listed above shall be considered a group of similar buildings for purpose of this subsection; individually such groups shall not comprise more than 25% of the dwelling units on any block. No single façade shall repeat more than once on the same block face. See Standards for façade variation under subsection 2.2.100.C.2.b. d. Neighborhood variety. When facades repeat on the same block face, they must have at least three intervening lots between them that meet the façade variation criteria. On any one block face, a mirrored façade (one that repeats but appears reversed as in a mirror) may count as two separate facades only once, so long as there is at least one intervening lot containing a different façade between the mirrored facades. e. Mix of materials. When a mix of building materials is selected to satisfy the façade variation standards of this Section, the following materials (i.e., when used in combination) meet the standard: wood or wood fiber cement (lap, panel, board and batten, timber, shingle or similar siding), brick, stucco, stone and/or similar masonry. See illustrations below for suggested ways to mix building materials. For example, stone, heavy timbers, or brick may be used as detailing material in combination with different siding materials to meet the standard. Stone or brick may be incorporated in the facade in several ways, such as on the whole facade, trim, wainscoting, or on a partial building story. Varying dimensions or spacing of siding and detailing may be used to create an appropriate building scale. For example, use of heavy timbers, or closer spacing or smaller dimensions of lap siding may be used around building entrances, dormers, gables and other elements, to accent those elements, while applying wider spacing or larger dimensions elsewhere. f. Façade Includes Building Corners. The material(s) used on the front facade must turn the corner and appear on at least a portion of the side elevations; at least some of the same combinations of materials used on the front façade must be used on the sides and rear of the house; however, the same patterns and proportions of materials used on the front façade need not be used on the sides and rear elevations.
Examples of Ways to Mix Building Materials on any one Structure

g. Duplex Attachment Options. Duplexes and Attached Houses shall share a common wall or common floor/ceiling, consistent with attachment options described in the figures below.
Examples of Duplex Structure Attachment Options
Duplex Side-by-Side Attached Duplex Attached by Garage Duplex Stacked
3. Articulation When the front, side, or rear elevation of any residential structure is more than 500 square feet in area, that elevation must be divided into distinct planes of not more than 500 square feet. For the purpose of this standard, areas of wall planes that are entirely separated from other wall planes are those that are separated by windows or doors, or by a recess or projecting section of the structure that projects or recedes at least one (1) foot from the adjacent plane, for a length of at least six (6) feet. Building offsets, bellybands, bays, dormers, porch canopies and other secondary roof forms are examples of acceptable changes in plane. The vertical mass of buildings shall be broken up through the use of architectural features such as horizontal cornices, pediments, beltcourses, canopies (e.g., covered porches) and/or bellybands at least 12” in width across the length of the elevation. Roofs must provide offsets or breaks in roof line, with at least one break of at least one (1) foot for every ninety (90) lineal feet of roof line. Roof offsets, cross gables, and similar interruptions are examples of acceptable breaks in roofline on sloped roofs. On flat roofs, stepped parapets or cornices proportioned to the building elevation may be used to meet this standard.
Building and structure heights shall conform to the standards in Table 2.2.030A. Additional height may be approved for mixed-use buildings through the Master Planned Development procedure and pursuant to the density bonus provisions of Section 2.2.090 Low-Impact Development.
Section 2.2.120 provides standards for the land uses and building types identified as Special Uses (‘S’) in Table 2.2.020A. The standards are intended to control the scale and compatibility of those uses within the Residential District. The standards in Section 2.2.120 are in addition to and do not replace the general development standards in Section 2.2.030A. This Section applies to the following uses and building types:
A. Accessory Dwelling
B. Attached Single Family Dwellings (Townhomes)
C. Bed and Breakfast Inns
D. Group Living (Residential Homes and Residential Facilities)
E. Home Occupations
F. Manufactured Homes on Individual Lots
G. Manufactured Dwelling Parks
H. Multiple Family Housing
I. Short-Term Vacation Rentals
J. Zero-Lot Line Housing (not common wall)
K. Temporary Medical Hardship Dwellings
L. Agricultural Uses in Residential Zones
M. Modular Home Special Use Standards
Accessory Dwelling Unit (attached, separate cottage, or above detached garage). Accessory dwelling units shall conform to all of the following standards:
Attached House (Townhome) Dwellings of three or more units. Attached House (townhome or rowhouse) dwellings shall comply with the standards in sub-sections 1 and 2, below, which are intended to control development scale; avoid or minimize impacts associated with traffic, parking, and design compatibility; and ensure management and maintenance of any common areas.
Bed and Breakfast Inns. Where Bed and Breakfast Inns are allowed in the Residential District, they shall comply with all of the following standards. (See also, Vacation Rentals, which are different than Bed and Breakfast Inns, under Section 2.2.120.I).
Group Living (Residential Homes and Residential Facilities). “Residential Home” is a residential treatment or training or adult foster home licensed by or under the authority of the department, as defined in ORS 443.400, under ORS 443.400 to 443.825, a residential facility registered under ORS 443.480 to 443.500 or an adult foster home licensed under ORS 443.705 to 443.825 that provides residential care alone or in conjunction with treatment or training or a combination thereof for five (5) or fewer individuals who need not be related. (See also, ORS 197.660.). “Residential Facility” is defined under ORS 430.010 (for alcohol and drug abuse programs); ORS 443.400 (for persons with disabilities); and ORS 443.880; residential facilities provide housing and care for 6 to 15 individuals (“facilities”) who need not be related. Staff persons required to meet State-licensing requirements is not counted in the number of facility residents and need not be related to each other or the residents. Residential homes and residential facilities shall comply with the following requirements unless otherwise preempted by State or Federal law:
Home Occupations. The purpose of this Section is to encourage those who are engaged in small commercial ventures that could not necessarily be sustained if it were necessary to lease commercial quarters, or which by the nature of the venture, are appropriate in scale and impact to be operated within a residence. Home occupations are encouraged for their contribution in reducing the number of vehicle trips often generated by conventional businesses. Two types of home occupations are allowed by this Code:
Type I Standards for Home Occupations:
Manufactured Homes on Individual Lots. Manufactured homes are permitted on individual lots, subject to all of the following design standards. Exceptions: 1) The standards in subsection 1-8, below, do not apply to units that lawfully existed within the City prior to [effective date of code]; except that when a unit is removed and/or relocated to another lot or parcel, then its replacement shall conform to Section 2.2.120F; New or replacement units in a manufactured home park need not conform to subsections 1-8, but changes or additions to non-conforming manufactured home parks shall conform to Chapter 5.2.
Manufactured/Mobile Home Parks. Manufactured Dwelling Parks shall conform to the provisions of Chapter 2.9.
Multi-Family Housing (including Cottage Cluster Housing). Where multi-family housing is allowed, it shall conform to all of the following standards, which are intended to promote livability for residents and compatibility with nearby uses. The standards of subsection 2.2.120.H may be adjusted through Site Design Review pursuant to Chapter 4.1. Figure 2.2.120.H provides a conceptual illustration of the requirements listed below.
Short-Term Vacation Rentals. Where short-term vacation rentals are allowed, they shall conform to all of the following criteria:
Zero-Lot Line Housing. Zero-lot line houses are subject to the same standards as other non-attached single-family housing, except that a side yard setback is not required on one side of the lot. The standards for zero-lot line housing are intended to ensure adequate outdoor living area, compatibility between adjacent buildings, and access to side yards for building maintenance. All zero-lot line houses shall conform to all of the criteria in subsections 1-4, below:
Temporary Medical Hardship Dwellings.
Agricultural Uses.
Modular Home Special Use Standards.
Modular Homes on Individual Lots. Modular homes are permitted on individual lots, subject to all of the following design standards. Exceptions: 1) The standards below do not apply to units that lawfully existed within the City prior to January 19, 2016; except that when a unit is removed and/or relocated to another lot or parcel, then its replacement shall conform to the standards listed below.