
Subdivision Lot Types

Corner Lot Clearance
(Ord. No. 66-89, § 1, 12-19-90)

Site Plan for Conditional Use Office Building

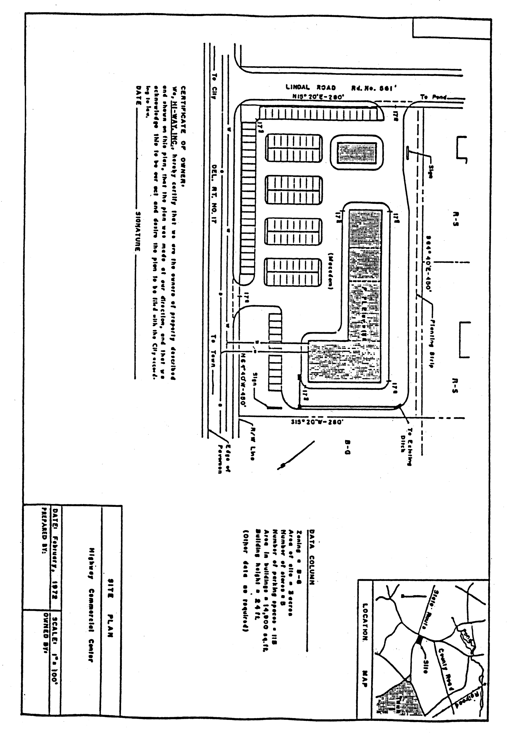
Site Plan Highway Commercial Center

Setbacks and Yards

Setbacks and Yards Irregular Shaped Lot

Setbacks and Yards Corner Lots

Floor Levels