APPLICATION OF DISTRICT REGULATIONS
A.
Compliance with regulations.
1.
No land or water area may be used except for a purpose permitted in the district in which it is located.
2.
No Building shall be erected, converted, enlarged, reconstructed, moved, or structurally altered, nor shall any building or part thereof be used except for a use permitted in the District in which the building is located.
3.
No building shall be erected, converted, enlarged, reconstructed, moved, or structurally altered to exceed the height limit herein established for the district in which the building is located.
4.
No building shall be erected, converted, enlarged, reconstructed, moved, or structurally altered except in conformity with the area regulations of the district in which the building is located.
5.
No building shall be erected, converted, enlarged, reconstructed, moved, or structurally altered except in conformity with the off-street parking and loading regulations of the district in which the building is located.
6.
No building shall be erected, converted, enlarged, reconstructed, moved, or structurally altered except in conformity with the floor area, floor area ratio, or open space ratio regulations of the district in which it is located.
B.
Encroachment reduction of lot area. The minimum Yards, parking space, and Open Spaces, including lot area per family, required by these regulations for each and every building existing at the time of the passage of these regulations or for any building hereafter erected, shall not be encroached upon or considered as required yard or open space for any other building, except as hereinafter provided, nor shall any lot area be reduced below the requirements of these regulations.
C.
Accessory buildings; prior construction. No Accessory Building, Structure, or dock shall be constructed upon a Lot until the construction of the main use building has actually commenced. No accessory building shall be used unless the main use building on the lot is also being used.
D.
Location on a lot required. Every Building or Structure hereafter erected, moved, or structurally altered shall be located on a lot as herein defined, and except as hereinafter provided, in no case shall there be more than one principal building on one lot.
(Ord. No. 2024-004, § 2(Exh. A), 3-12-24)
A.
RS-1 Low Density Single-Family Residential District.
1.
Purpose and intent. The purpose of this District is to provide for low-density single-family residential development in a spacious setting, together with other principal uses as may be approved as use exceptions and such accessory uses as may be necessary and compatible.
2.
Uses permitted.
a.
Single-Family Residential Dwellings.
b.
Duly licensed Home-based Businesses pursuant to Section 559.955, Florida Statutes.
c.
Accessory Uses and Structures per Section 8.16.A.
3.
Use exceptions as may be approved under Section 8.11.
4.
Prohibited uses.
a.
All other uses not specifically or provisionally permitted herein.
5.
Site development standards.
a.
Minimum lot size:
(1)
Area—6,000 square feet.
(2)
Frontage—60 feet.
(3)
Refer to subsection 5.f. below for lot area incentive.
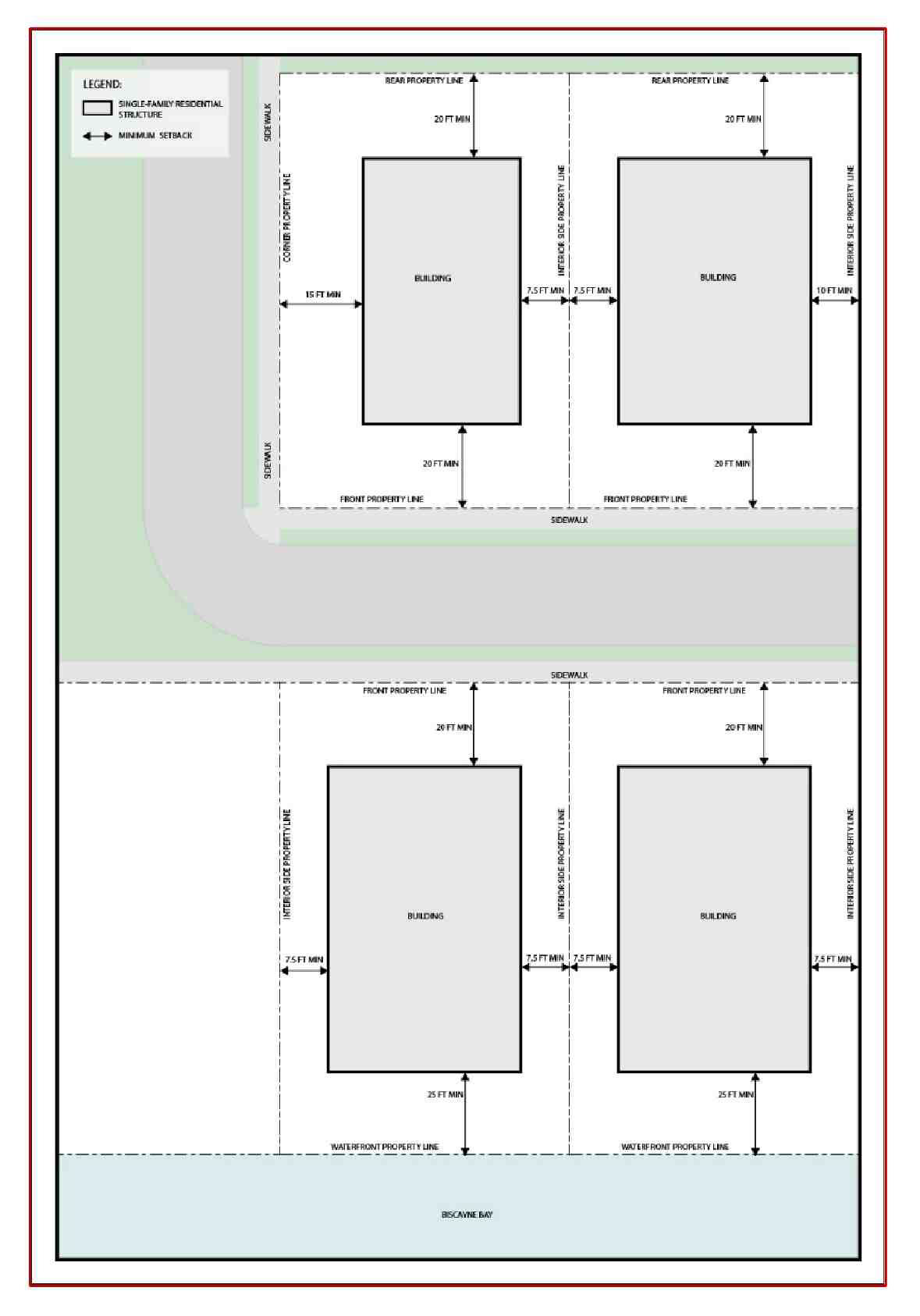
b.
Minimum yard setbacks:
c.
Maximum building height: Maximum building height shall not to exceed 30 feet above Base Flood Elevation (BFE) plus minimum freeboard. Where a Structure is elevated pursuant to subsection 10.5.B., the ground level below the first elevated floor shall be designed in accordance with the requirements of subsection 8.10.B.5.e.
d.
Minimum Floor Area:
(1)
One story—2,000 square feet.
(2)
Two story—2,600 square feet.
e.
Lot Coverage:
(1)
Maximum lot coverage - 60% of the total Lot Area.
(2)
Pervious Areas: Up to 25% of the combined square footage of all parking areas, driveways, walkways, patios and terraces built with permeable materials may be subtracted from the maximum calculated impervious coverage on a lot, if approved by the Director of Public Works (or designee), based on the porosity of the material used, and the amount (percent) of annual rainfall that will pass through the material.
(3)
Green Space: A minimum of twenty percent (20%) of the total Lot Area shall be maintained as unobstructed Green Space, and shall be landscaped. No less than forty percent (40%) of the space in the Front Yard area shall be unobstructed, landscaped Green Space. For maximum vehicular and impervious area allowed in the Front Yard of single-family residential properties, refer to Section 9.3.E.2.c.
f.
The clearance of an Understory created by elevating a single-family residential building in accordance with subsection 10.5.B. shall not exceed ten (10) feet, measured from Grade to the underside of the first-floor slab. Only the following Accessory Uses shall be allowed in the Understory space:
(1)
Unenclosed parking.
(2)
Vestibule to the living area by means of a stairway or elevator, not to exceed 100 square feet in area. No other habitable space is permitted.
(3)
Enclosed garage or storage space not to exceed 500 square feet, provided that the walls are designed so as not to impede the flow of water and the space is unfinished and unpartitioned.
(4)
The perimeter of an understory space may be visually screened with landscape material selected, installed, and maintained in accordance with the landscaping standards of Division 4, Landscaping, of this ULDC, and Chapter 18A of the Miami-Dade County Landscaping Code.
B.
RS-2 Medium Density Single-Family Residential District.
1.
Purpose and intent. The purpose of this District is to provide for medium-density single-family residential development in a relatively spacious setting, together with other principal uses as may be approved as use exceptions and such accessory uses as may be necessary and compatible.
2.
Uses permitted.
a.
Single-Family Residential Dwellings.
b.
Duly licensed Home-based Businesses pursuant to Section 559.955, Florida Statutes.
c.
Accessory Uses and Structures per Section 8.16.A.
3.
Use exceptions as may be approved under Section 8.11.
4.
Prohibited uses.
a.
All other uses not specifically or provisionally permitted herein.
5.
Site development standards.
a.
Minimum lot size:
(1)
Area—6,000 square feet.
(2)
Frontage—60 feet.
(3)
Refer to subsection 5.f. below for lot area incentive.
b.
Minimum yard setbacks:
c.
Maximum building height:
(1)
Maximum building height shall not exceed 30 feet above Base Flood Elevation (BFE) plus minimum freeboard. Where a Structure is elevated pursuant to subsection 10.5.B., the ground level below the first elevated floor shall be designed in accordance with the requirements of subsection 8.10.B.5.e.
(2)
Privacy between neighboring residential units should be maintained by placing and orienting windows of second floors so that they do not face directly opposite windows in adjacent units.
d.
Lot coverage:
(1)
Maximum lot coverage - 55% of the total Lot Area.
(2)
Pervious Areas: Up to 25% of the combined square footage of all parking areas, driveways, walkways, patios, and terraces built with permeable materials may be subtracted from the maximum calculated impervious coverage on a lot, if approved by the Director of Public Works (or designee), based on the porosity of the material used, and the amount (percent) of annual rainfall that will pass through the material.
(3)
Green Space: A minimum of twenty percent (20%) of the total Lot Area shall be maintained as unobstructed Green Space and shall be landscaped. A minimum of forty percent (40%) of the Front Yard area shall be Green Space. For regulations relating to driveways/parking area and impervious area allowed in the Front Yard of single-family residential properties, refer to Section 9.3.E.2.C.
e.
Understory Area. The clearance of an Understory created by elevating a single-family residential building in accordance with subsection 10.5.B. shall not exceed ten (10) feet, measured from Grade to the underside of the first-floor slab. Only the following Accessory Uses shall be allowed in the Understory space:
(1)
Unenclosed parking.
(2)
Vestibule to the living area by means of a stairway or elevator, not to exceed 100 square feet in area. No other habitable space is permitted.
(3)
Enclosed garage or storage space not to exceed 500 square feet, provided that the walls are designed so as not to impede the flow of water and the space is unfinished and unpartitioned.
(4)
The perimeter of an understory space may be visually screened with landscape material selected, installed, and maintained in accordance with the landscaping standards of Division 4, Landscaping, of this ULDC, and Chapter 18A of the Miami-Dade County Landscaping Code.
f.
Lot area incentive: A property with a Lot Area of at least 13,500 square feet and a Lot Frontage of at least 120 feet, shall be permitted a maximum building Height of 36 feet above Base Flood Elevation (BFE) plus minimum freeboard, and a maximum Lot Coverage of 60% of the Lot Area, subject to the following minimum setback requirements:
C.
RM-40 Medium Density Multiple Family Residential District.
1.
Purpose and intent. The purpose of this District is to provide for medium density multi-family residential development, together with other principal uses as may be approved as use exceptions and such accessory uses as may be necessary and compatible. This district is intended to be utilized as a transitional buffer between single-family residences and high-density apartments or commercial uses.
2.
Uses permitted.
a.
Multi-Family Residential Dwellings.
b.
Management offices within Structures containing eight or more Dwelling Units.
c.
Duly licensed Home-based Businesses pursuant to Section 559.955, Florida Statutes.
d.
Accessory uses and structures per Section 8.16.A.
3.
Prohibited uses.
a.
All other uses not specifically or provisionally permitted herein.
4.
Site development standards.
a.
Minimum lot size.
(1)
Area—10,000 square feet.
(2)
Frontage—100 feet.
b.
Minimum yard setbacks.
c.
Maximum density. Forty (40) efficiency or one-bedroom Dwelling Units per acre of net lot area. The following required amount of lot area per unit shall determine the number of other dwelling unit types permitted.
d.
Maximum building height.
(1)
45 feet or four (4) stories, whichever is less.
e.
Exclusion of grade level parking from height limitation.
(1)
A grade level of parking, not exceeding ten (10) feet in height, shall not be included in this height limitation.
(2)
The grade level parking floor may include other nonresidential uses, including laundry rooms, recreational rooms, storage rooms, and an office for building management.
f.
Minimum pervious area: Twenty-five percent (25%) of the total lot area shall be retained as pervious area and shall be landscaped and maintained.
g.
Minimum floor area.
5.
Single-family homes approved under the provisions of Section 8.11 consistent with the setback provisions of the RS-1 (Low Density Single-Family Residential District).
6.
Use exceptions as may be approved under Section 8.11.
D.
RM-70 High Density Multiple Family Residential District.
1.
Purpose and intent. The purpose of this district is to promote the efficient use of land and to encourage development of attractive, pedestrian-friendly, sustainable, and resilient high-density multifamily residential areas. This zoning provides designated areas for high-density multifamily residential Structures, together with other Principal Uses as may be approved as Use exceptions and permitted Accessory Uses pursuant to Section 8.16.A., as may be necessary and complementary to, as well as compatible with a permitted Use.
2.
Use permitted.
a.
Multi-Family Residential Dwellings, along with property-specific Amenities.
b.
Duly licensed Home-Based Businesses pursuant to Section 559.955, Florida Statutes.
c.
Supplementary uses as permitted by Section 8.16.A.1.b., provided they are Ancillary in nature to the Principal Use.
3.
Prohibited uses.
a.
All other uses not specifically or provisionally permitted herein.
4.
Site development standards.
a.
Minimum lot size.
(1)
Area - 11,200 square feet.
(2)
Frontage - 80 feet.
b.
Minimum yard setbacks.
(1)
Waterfront setback encroachments. Cantilevered awnings and entry canopies may encroach up to seven (7) feet into a waterfront setback, up to but not extending into, the Island Walk Easement. Above the first story of the Building, cantilevered balconies, bay windows, and roofs may encroach up to seven (7) feet into a waterfront Setback, up to but not extending into, the Island Walk Easement.
(2)
Balconies. Exterior balconies/terraces and covered walkways above the ground floor, excluding rooftops and other non-covered areas, may extend into the side Setbacks a maximum of twenty-five percent (25%) of the allowable setback measurement but may not extend beyond the Pedestal of a Building with a pedestal and Tower design.
(3)
Flex setback for buildings with a pedestal and tower design. To promote creative design solutions to the Building configuration, the Village Commission may allow a building Tower (and Pedestal, for sites involving only one Lot) to encroach into the Setbacks as per the following "flex box" criteria:
(a)
Pedestal (aka podium) shall be defined as that portion of a building up to 100 feet in height which contains the building's structured parking and amenities.
(b)
Tower shall be defined as that portion of a building that starts at the top of the pedestal or podium.
(c)
The maximum floor plate for the tower portion of buildings with a pedestal and tower design shall be 17,500 square feet.
(d)
The tower shall be stepped back an additional ten (10) feet from the face of the pedestal along any street frontage.
(e)
The maximum achievable floor area is calculated based upon the buildable "box" allowed under the regularly applicable setback regulations and the allowable height (the "Box Floor Area").
(f)
The building may be designed to encroach onto regularly applicable setbacks, with the exception of the side setback that accommodates the View Corridor, provided the encroachment does not exceed thirty percent (30%) of the required setback and the total gross floor area of the building does not exceed the Box Floor Area. In calculating the total gross floor area, all square footage of any structure (whether exterior or interior) shall be included.
(g)
In no instance may any encroachment into any side yard setback be longer than one-third (⅓) of the distance between the front and rear setback. Balconies with railings or other physical containment, which do not exceed 42 inches in height are not included in the measurement of the wall length.
c.
Maximum density. Pursuant to the Village's Comprehensive Plan, the maximum base density permitted in all RM-70 properties shall be seventy (70) units to the acre, except for properties receiving transferred development rights pursuant to Section 8.13, which shall be permitted to exceed the maximum base density by no more than thirty percent (30%). Receiver sites may be developed as otherwise permitted by this Unified land Development Code, as may be amended from time to time, in combination with the development rights available to the site, provided that the overall district density is consistent with, and does not exceed, the overall density allowable by the Village's Comprehensive Plan.
d.
Maximum base building height: 150 feet from BFE for the property plus freeboard.
e.
Maximum bonus building height: Bonus height may be approved according to Section 8.12.
f.
Minimum pervious area at ground level: Thirty percent (30%) of the total Lot Area and thirty percent (30%) of the front yard area. The minimum required pervious area shall be retained/provided at grade level. (For additional related standards, see subsection 5.b. below).
g.
Green space: A minimum of twenty percent (20%) of the total Lot Area shall be maintained as unobstructed Green Space and shall be landscaped. On lots up to 22,400 square feet in size, at least twenty-five percent (25%) of the Front Yard area shall be maintained as green space. On lots greater than 22,400 square feet in size, at least thirty percent (30%) of the front yard area shall be maintained as green space. The Commission may waive or reduce the minimum required green space in the front yard of a project through the Site Plan approval process, if it finds that the character of the Building or the configuration of the plan makes such a reduction reasonable or necessary, and provided that the square footage of the approved reduction in green space is provided elsewhere on the site.
h.
Minimum floor area:
5.
Additional required features and requirements. All properties developed under the RM-70 Zoning requirements shall provide the following:
a.
Public access boardwalk as required by the Miami-Dade County Shoreline Review Committee and by North Bay Village per Section 8.17.O. (Developer shall dedicate an easement to the Village conveying the boardwalk and a public access corridor).
b.
All exterior paving surfaces, except for covered parking garages, shall be constructed of permeable material. Up to twenty-five percent (25%) of the combined square footage of all parking areas, driveways, walkways, patios, and terraces built with permeable materials may be subtracted from the maximum calculated impervious coverage on the lot, if approved by the Director of Public Works (or designee), based on the porosity of the material used, and the amount (percent) of annual rainfall that will pass through the material.
c.
Artwork and art installations shall be provided in the front and within the Island Walk portion of each development preference should be given to local artists and interactive experiences that highlight Florida's cultural, ecological, and historic assets. Artwork should be placed in a manner that does not encumber access to or views of the waterfront. The proposed location and character of all artworks shall be considered during the Site Plan approval.
d.
Developments shall comply with existing landscaping requirements, as well as changes implemented in the future to conform to contiguous developments and landscaping plans implemented for the causeway and interior island areas.
e.
Developments shall provide furnishings, lighting, and pedestrian amenities along the Island Walk per Section 8.17.O., Island Walk Standards.
f.
All parking garages shall be constructed with architectural features that hide them from public view (glass, screening, greenery etc.) pursuant to subsections 9.3.E. and I.
g.
Lighting shall be provided in all areas in the front of development where trees are planted.
h.
Properties developed pursuant to a transfer of development rights pursuant to Section 8.13 shall be required to achieve at least thirty (30) green building and design points pursuant to the standards of Section 8.21.
i.
Landscaped Green Space shall be used to delineate existing and proposed Structures, parking areas, driveways, and other vehicular use areas, sidewalks, and walkways, utilities, and/or Easements on the property.
j.
Building forms shall be varied to avoid monotony but shall be sensitive to the profiles of adjacent Buildings and shall configure second and third stories adequately to reduce the apparent overall scale of the building.
k.
A minimum of thirty percent (30%) of the ground level front facade shall contain openings/transparency (either windows, doors, or transitional spaces defined by porches, porticoes, or colonnades).
l.
The massing of the buildings resulting from volumetric distribution according to the dimensional requirements shall provide light-plane access in between buildings, even if maximum build-out of adjacent properties occurs.
m.
Main entries shall be prominent and oriented to the Streets and rendered in appropriate scale relative to adjacent buildings as well as the individual building.
E.
CG General Commercial District.
1.
Purpose and intent. The purpose of this district is to encourage the development of general office, retail, service commercial, tourist accommodations, and commercial-residential mixed use.
2.
Uses permitted:
a.
Bank or financial institution.
b.
Clinic, urgent care, or hospital.
c.
Dry cleaning substation or laundromat.
d.
Lounge or nightclub (subject to the provisions of Chapter 111 of the Village Code of Ordinances).
e.
Medical or dental office/laboratory.
f.
Personal services establishments, including, but not limited to, shoe repair, barber and beauty shop, stock brokerage, employment agency, travel bureau, and messenger service.
g.
Post office.
h.
Professional offices, including but not limited to architecture, accounting, engineering, investigative, investment and tax counseling law, medicine, and real estate.
i.
Multi-family residential dwellings, in conjunction with ground floor commercial.
j.
Tourist accommodations including hotels, motels, vacation rentals, and time-sharing units.
k.
Restaurants, Coffee Shops, delicatessens, and fast order food establishments (excluding any form of drive-in or drive-thru service regardless of the type of establishment; see subsection E.3.a).
l.
Outdoor seating/dining shall be subject to the following requirements and conditions:
(1)
An application must be filed with the Village Manager, or designee, for administrative review and approval, which shall include layout of all tables, chairs, benches, and other furniture; pedestrian ingress and egress; location of refuse containers; and other elements necessary to illustrate the proposed outdoor seating/dining use and area (all drawings must be titled, indicate orientation, and be at an acceptable scale).
(2)
Outdoor seating/dining areas and uses of the public Right-of-Way and/or any private property may be approved, denied, or approved with conditions, modifications, safeguards, or stipulations appropriately and reasonably related to the intent, purposes, standards, and requirements of the related regulations by the Village Manager. Such permit shall not be transferable in any manner and is strictly a warrant permit, issued for a period of one year, renewable annually via payment of the annual occupational license fee for such outdoor seating/dining uses.
(3)
The fee for outdoor dining/seating use and area will be charged annually in accordance with the Village's adopted Fee Schedule; the permit fee shall be added to the occupational license fee for the main business.
(4)
The applicant shall provide an indemnity agreement that is acceptable to the Village Manager. This agreement will include specification of liability insurance provided.
(5)
The warrant permitting of outdoor seating/dining use and area may be revoked by the Village Manager or designee, upon finding that one or more conditions of these regulations have been violated, or that the outdoor seating/dining area and use are being operated in a manner that constitutes a public nuisance, or in any way that constitutes a reasonable risk of potential liability to the Village.
(6)
Outdoor seating/dining use and area may be temporarily suspended by the Village for public use/purpose, utility, sidewalk or road repairs, emergency situations, or violations of provisions contained herein. The length of suspension shall be determined by the Village Manager, as necessary. Removal of all street furniture and related obstructions shall be the responsibility of the owner/operator of the outdoor seating/dining.
(7)
Outdoor seating/dining area shall be kept in a neat and orderly appearance and shall be kept free from refuse and debris. The applicant shall be responsible for daily cleaning and sweeping of the outdoor seating/dining area and for the cleanliness and maintenance of any outdoor planters immediately adjacent to the outdoor seating/dining area. Use of Village sidewalks for trash and garbage removal shall be prohibited.
(8)
Outdoor seating/dining use and area shall not interfere with the free and unobstructed pedestrian or vehicular circulation of traffic, public access to any Street intersections, crosswalks, public seating areas and conveniences, bus stops, Alleys, service Easements, handicap facilities, or access to any other commercial establishments. The width and location of the sidewalk pedestrian passage shall be as follows:
If there is seating on one side of the sidewalk, a minimum of five feet of sidewalk must remain clear and unobstructed for pedestrian passage.
(9)
Outdoor seating/dining area on the public rights-of-way shall be open and unenclosed. No building structures of any kind shall be allowed in and over any portion of the outdoor seating/dining area located on public property.
(10)
Tables, chairs, and all other furniture used in the operation of an outdoor seating/dining area shall not be anchored or restrained in any manner. Individual table umbrellas, planters, or other such non-stationary elements may be permitted within the outdoor seating/dining area and where applicable, shall have a minimum clearance height of seven feet above grade.
(11)
Outdoor seating/dining use and area shall be restricted to the length of the sidewalk or public Right-of-Way immediately fronting the cafe or other establishment
(12)
Outdoor seating/dining area shall be at the same elevation as the adjoining sidewalk or public right-of-way.
(13)
Carts and trays for serving food are permitted in the outdoor seating/dining area.
(14)
Outdoor seating/dining use and area shall not be provided with amplified sound of any kind.
(15)
Outdoor Seating/Dining Areas may serve Alcoholic Beverages where such service is strictly incidental to the service of food and from a service Bar only; provided no entertainment of any kind is furnished. No Sign of any type or character shall be exhibited or displayed to the outside denoting that alcoholic beverages are obtainable within.
(16)
Any administrative decision may be appealed to the Village Commission in accordance with the requirements of this Code.
(17)
The hours of operation shall coincide with that of the primary Restaurant.
m.
Retail sales establishments, including, but not limited to, the sale of appliances, books, stationery, drugs, hardware, liquor, groceries, meats, produce and fish; however, such retail sales shall be restricted to merchandise stored and displayed within the Main Structure.
n.
Radio and television transmitting station and studio.
o.
Studios for artists, photographers, sculptors, or musicians, including: the teaching of art, music, dancing, or artistic instruction.
p.
Daycare or nursery.
q.
Repair service establishments (shoes, watches, appliances, and other similar uses).
r.
Gym or fitness center.
s.
Commercial parking lot.
t.
Business, vocational, and trade schools.
u.
Pharmacy.
v.
Animal hospital, grooming, and/or kennel.
w.
Funeral home or mortuary.
x.
Art gallery.
y.
Religious institution.
z.
Lodges, social organizations, and union halls.
aa.
For accessory uses and structures, please refer to Section 8.16.A.
3.
Special uses permitted. Uses permitted upon approval of the Village Commission in accordance with the provisions pertaining to use exceptions (See Section 8.11).
a.
Drive-Thru or Drive-In service.
b.
Marinas, provided that the following provisions are adhered to:
(1)
No docks or piers, including mooring piles, catwalks, and other appurtenances, shall be constructed closer than 7.5 feet to any adjacent property line.
(2)
In no case shall a dock or pier project more than ten percent into the width of any waterway.
(3)
Fire prevention and fire control equipment shall be provided as required by the South Florida Building Code.
(4)
In conjunction with the dockage of moorage of vessels, the following water-related activities, vessels, and structures are prohibited:
(a)
Commercial vessels.
(b)
Haul-out facilities for major boat repair or overhaul work.
(c)
Unscreened storage of boating supplies or accessories in the required Front Yard Setback area.
(d)
Permanent live-aboard vessels except as required for work or security purposes.
c.
Printing and publishing establishments, including blueprinting and photostating, provided that no such use shall occupy more than 1,500 square feet of Gross Floor Area.
d.
Service stations, provided that the following provisions are adhered to:
(1)
All Structures shall be designed in a manner that is compatible with the overall environmental and architectural design goals of the community.
(2)
All properties shall have at least 150 feet of frontage.
(3)
All new and used merchandise shall be stored and displayed within the main structure except tires, accessories, and lubrication items, which may be maintained in movable or enclosed cabinets.
(4)
No used or discarded automotive parts or equipment or permanently disabled or wrecked vehicles shall be located outside the Main Structure except within an enclosed trash storage area.
(5)
Major repairs or engine overhauling or transmission repair, painting, body and fender repair, and tire recapping is not permitted.
(6)
The rental of heavy equipment and the sale or rental of merchandise not related to the motoring public, other than as specified herein, is excluded.
(7)
The storage of up to ten (10) rental trailers or automobiles is permitted, provided that the trailers or automobiles are backed up against a six-foot high wall and located not less than twenty (20) feet from any sidewalk, street, or driveway.
(8)
Car washes are permitted as an Ancillary Use subject to being located 200 feet from residential uses and subject to hours of operation.
(9)
Trash shall be stored in areas shielded from public view. Storage trash containers shall be enclosed and covered.
(10)
Any lights provided to illuminate or advertise the service station, shall be installed and maintained in a manner so as not to create an undue glare on adjacent properties.
(11)
Structures shall not occupy more than thirty percent (30%) of the Total Lot Area.
(12)
Driveways shall be permitted at the intersections of primary and secondary arterials, provided the construction of driveway entrances is within the curb return, but shall be at least five feet beyond the end of the curb return. At all intersections, whenever possible, combine driveways servicing both service station and adjacent uses, shall be designated and provided.
(13)
Planter areas and tree wells shall be constructed and equipped with irrigation, lighting, and drainage facilities, and landscaped prior to final building inspection.
(14)
Whenever the Use abuts a Residential District, a wall shall be erected along the property line eight feet in height.
(15)
Service stations shall not be permitted within 300 feet of the property line of any House of Worship, hospital, and school.
(16)
No more than four service stations shall be permitted within the Village at any one time.
e.
Theaters for the showing of motion pictures shall provide no less than 400 fixed seats. When the theater is to be used solely for activities of a performing art, or an event of a cultural or civic nature, a lesser number of seats may be required by the Commission.
f.
Yacht clubs, provided they have a minimum of 150 feet of water frontage and no main building is less than 4,000 square feet in gross floor area.
g.
Public Storage, in conjunction with another use which is listed as a permitted use in the General Commercial zoning district. The public storage use may occupy no more than thirty-five percent (35%) of the floor area of the development. Additionally, no special use approval for a public storage use shall be granted within 2,500 feet from an existing public storage facility. This distance shall be measured as the airline distance between the nearest property lines of the proposed public storage location and the existing public storage location.
4.
Prohibited uses. Boat storage facilities utilized for the purpose of storing boats shall be prohibited in the CG (General Commercial) District.
5.
Site development standards.
a.
Minimum lot size:
(1)
Area—10,000 square feet.
(2)
Frontage—75 feet.
b.
Minimum yard setbacks:
c.
Maximum base building height: 150 feet.
d.
Maximum bonus building height: Bonus height may be approved according to Section 8.12.
e.
Maximum FAR: The maximum floor area ratio for all non-residential uses is 3.0. Areas used for parking shall not be counted towards maximum FAR. Hotels and motels are considered commercial uses.
f.
Maximum base density for residential units: Seventy (70) efficiency or one (1) bedroom dwelling units per acre of net lot area. The following required minimum amount of lot area per unit shall determine the number of other dwelling unit types permitted:
g.
Maximum bonus density: Bonus density may be approved according to the Transfer of Density Rights program in Section 8.13.
h.
Minimum pervious area: Twenty percent (20%) of the total parcel. The lot area at grade level shall be retained as pervious area and shall be landscaped.
i.
Landscaping: Shall be provided according to Miami-Dade Landscaping Chapter 18A.
j.
Minimum floor area required by unit type:
F.
Urban Core Zone (T6).
1.
Purpose and Intent. The Urban Core Zone consists of the highest density and greatest variety of Uses, including civic buildings. A network of small blocks has walkable thoroughfares with wide sidewalks, with steady tree planting and buildings set close to the Frontage with frequent doors and windows. See Chapter 15 for use and development standards within the Urban Core Zone.
G.
Public Buildings and Grounds.
[Reserved]
(Ord. No. 2019-001A, § 2(Exh. A), 2-28-19; Ord. No. 2020-001, § 2, 1-14-20; Ord. No. 2021-012, § 3, 6-30-21; Ord. No. 2022-005, § 2, 3-8-22; Ord. No. 2023-011, § 3(Exh. B), 9-28-23; Ord. No. 2022-012, § 2, 11-2-22; Ord. No. 2024-004, § 2(Exh. A), 3-12-24; Ord. No. 2024-005, § 1(Exh. A), 5-14-24)
Editor's note— Ord. No 2019-001A was adopted Feb. 28, 2019, but was not executed by the Mayor, Clerk, and Village Attorney until Feb. 28, 2023.
It is recognized that a shortage of workforce housing exists in North Bay Village which is detrimental to the public health, safety, and welfare. The current housing stock in the Village is not affordable to many workers who would choose North Bay Village as a place to live and thus they are forced to live in other areas of Miami-Dade County and commute greater distances. The purpose of this regulation is to expand the level of housing choices available to households, by (i) requiring a minimum number of workforce housing units in new and redevelopment projects of 75 units or more located in the T6 and RM-70 zoning districts, and (ii) providing for an additional Workforce Housing Density Bonus (WHDB) to property owners with land located in the T6-24, T6-24MU and T6-30 transects, unless otherwise stipulated in an approved development agreement in connection with a Special Area Plan approval. The program is intended to serve the housing needs of people employed in the jobs that the general population of the community relies upon to make our community livable such as educators, first responders and service workers.
A.
Minimum Workforce Housing Unit Requirement. A mandatory five percent (5%) of dwelling units in residential developments of seventy-five (75) units or more, up to the maximum density permitted without bonuses shall be developed as workforce housing Dwelling Units for households with incomes between 60% and 140% of Miami-Dade County AMI.
B.
Workforce Housing Density Bonus Program. Density bonuses may be approved by the Village Commission for participation in the Village public benefit program, in compliance with this section. The purpose of this regulation is to provide a Workforce Housing density bonus to property owners with land located in the T6-24, T6-24MU and T6-30 transect zones along Kennedy Causeway, for the planning and construction of workforce housing units for households with incomes between 80% and 100% of Miami-Dade County AMI.
1.
During the site plan and approval process, the Village Commission may approve density up to 120 dwelling units per acre if the applicant for development approval sets aside a minimum additional five percent (5%) of the total units for non-subsidized workforce and pays the community contribution Fee for each additional dwelling unit approved above the base density of 70 dwelling units per acre up to a maximum density of 120 units per acre, as stipulated in subsection D. below. The workforce housing units to be provided pursuant to this subsection are in addition to, and in excess of, the minimum workforce housing requirement set forth in subsection 8.10.1.A.
2.
Additional density above 120 dwelling units per acre, up to a maximum of 150 units per acre may be approved by the Village Commission during the site plan review and approval process, with the provision of additional workforce housing, if the applicant for development approval sets aside a minimum additional five percent (5%) of the total units for non-subsidized workforce housing and pays the community contribution fee per additional dwelling unit approved above 120 units per acre up to a maximum of 150 units per acre, as stipulated in subsection F.4 below. The workforce housing units to be provided pursuant to this subsection are in addition to, and in excess of, the minimum workforce housing requirement set forth in subsection 8.10.1.A. and 8.10.1.B.1. Total density including bonuses shall not exceed 150 dwelling units per acre.
3.
The following table summarizes the relationship between density and workforce housing units as a percentage of total units in a site plan:
C.
Applicability. The workforce housing requirements described above shall be satisfied through on-site provision of qualifying units for multifamily residential developments located on parcels zoned T6-24, T6-30, T6-24MU or RM-70 that are offered for rent; as well as to any multifamily residential project approved for sale but which converts to for-rent units within five (5) years of issuance of a Certificate of Occupancy (CO). All CO's issued for a for-sale multifamily development shall include a condition referencing this requirement. For-sale condominium developments may provide for development of workforce housing units on-site or may instead satisfy workforce housing obligations through a payment in-lieu of workforce housing, as set forth in Section 8.10.2, at the applicant's option.
D.
Validity Period. Development approvals shall be valid for two (2) years in accordance with these regulations following final approval by the Village Commission unless otherwise approved by development order. Approved site plans may be granted no more than two (2) one-year renewals, subject to approval by the Village Commission. To avoid expiration of the site plans, the applicant must apply for and obtain a full building permit for substantial construction prior to the expiration of the timeframes set forth above. Community contribution fees paid prior to expiration of a site plan approval are nonrefundable, or transferable to a new site plan approval. A development seeking re-approval for a site plan that has lapsed, or a new site plan approval on a property where a site plan has lapsed, shall be assessed another community contribution Fee for bonus density in accordance with this section.
E.
Community Contribution Fee.
1.
Community contribution feed for bonus units over and above the base density shall be assessed by and be payable to the Village in accordance with its adopted Fee Schedule.
2.
The fee per unit of bonus density per acre shall be reviewed and adjusted as necessary by the Village Commission during the annual budget process.
F.
Workforce Housing Program Administration.
1.
Purpose. The purpose of this section is to create administrative procedures for the implementation of the Workforce Housing Program established pursuant to Chapter 15, Section 15.2.H., Chapter 8, Section 8.10.1. of the North Bay Village Unified Land Development Code, and applicable to mixed-use developments in the T6-24, T6-24MU (Municipal Use) and T6-30 transect zones along Kennedy Causeway (79th Street Causeway).
2.
Definition of Terms. The following definitions shall apply to this chapter. Additional relevant definitions are contained in Chapter 3 of the North Bay Village Unified Land Development Code:
a.
Condominium. A form of ownership of real property created pursuant to Chapter 718 of the Florida Statutes, which is comprised entirely of units that are owned by one or more persons, and which there is, appurtenant to each unit, an undivided share in common elements.
b.
Condominium Conversion. As established by Sections 718.604—718.622, Florida Statutes.
c.
Control Period. Each 30-year period during which the affordability restrictions imposed by this article shall apply. The control period begins at the time of any sale or resale of the affected unit by every new Workforce Housing Unit owner.
d.
Covered Development. All developments providing Workforce Housing units pursuant to Chapter 8, Section 8.10.1. of the North Bay Village Unified Land Development Code.
e.
Department. Unless otherwise indicated, refers to the Department or Division designated by the Village Manager to administer this program or any successor agency.
f.
Developer. Any person, form, corporation, partnership, limited liability company, association, joint venture, or any entity or combination of entities that apply for development orders or permits for residential Dwelling Units seeking to utilize the density bonus available pursuant to Chapter 8, Sections 8.12.5, 8.13, 8.15, and Chapter 15, Section 15.1.H. of the North Bay Village Unified Land Development Code, but does not include the state or any county, municipality, or any governmental entity.
g.
Eligible Household. A household whose total income is between 60% and 140% of Miami-Dade County Median Household Income (MHI).
h.
Eligible Household Income. Any income derived from any proposed occupants of a Workforce Housing unit who are 18 years of age or older and who will use the unit as their primary residence.
i.
Household. Any natural person who occupies a Workforce Housing unit as their primary residence.
j.
Market Rate Dwelling Units. All dwelling units in a covered development that are not Workforce Housing units as defined herein.
k.
Median Household Income (MHI). The median income level for Miami-Dade County households as determined in the U.S. Census Bureau decennial census and/or U.S. Census Bureau American Community Survey (ACS) 5-Year Estimates, which are updated every year.
l.
Program Administrator. Unless otherwise indicated, refers to the individual or individuals designated by the Village Manager to administer the Workforce Housing Program.
m.
Qualified Household. An eligible household with annual incomes within the affordable ranges established in this Code.
n.
Qualified Improvement. Any addition or replacement to the Workforce Housing Unit that adds materially to the value of the unit, prolongs the unit's useful life, or adapts the Workforce Housing unit to new uses and the replacement of any existing amenities.
o.
Workforce Housing Density Bonus Agreement. A written agreement between an applicant for a development and the Village containing specific requirements to ensure the continuing affordability of the workforce housing units included in a development during the control period.
p.
Workforce Housing Unit. A rental dwelling unit occupied by an eligible workforce household where the maximum monthly rental cost shall be restricted to an amount affordable to a workforce household with a total annual income between 60% and 140% of Miami-Dade County MHI.
q.
Workforce Housing Unit Rent. Rents that do not exceed the maximum monthly Rent Limits as determined for Miami-Dade County by the U.S. Department of Housing and Urban Development in its annual Income Limits and Rent Limits as used by Florida Housing Corporation for its multifamily rental programs.
3.
Compliance Procedures. Workforce Housing Declaration of Restrictive Covenants and Workforce Housing Agreement.
a.
Every Workforce Housing unit established pursuant to Chapter 15, Section 15.2.1. of the North Bay Village Unified Land Development Code shall be offered for rent to a qualified household to be used for their own primary residence.
b.
Prior to the initial rental of any workforce unit, the owner must record the Workforce Housing Density Bonus Agreement in the chain of title for that unit, at no cost to the Village, and submit recordation documentation to the Village. The rental contract for the unit must also contain a clause summarizing the workforce housing requirements and rent level control and referencing the recorded Workforce Housing Density Bonus Agreement.
c.
The maximum rental rates for workforce units shall not exceed the affordability limit of an eligible workforce household making an annual income within the applicable median household income range pursuant to this section as published annually by North Bay Village.
4.
Application of Workforce Housing Density Bonus. Any development proposing to utilize the density bonus allowed pursuant to Section 8.10.1 must submit a Workforce Housing Density Bonus zoning application with their application for site plan review to the Village for consideration and approval by the Village Commission. At a minimum, the density bonus application shall include:
a.
General description of the development including location, size, land use, zoning, and the number of rental units and/or for sale units the development will contain;
b.
Conceptual development plan showing the proposed location of the Workforce Housing rental units;
c.
Total number of market rate and Workforce Housing units;
d.
Estimated initial monthly rent for each Workforce Housing Unit;
e.
Provide the size in terms of square feet and number of bedrooms for each Workforce Housing unit;
f.
Location in development of each Workforce Housing unit and its applicable AMI affordability range;
g.
If construction is to be phased, a phasing plan identifying the number of Workforce Housing units and market-rate units in each phase;
h.
Documentation and plans regarding the interior and exterior appearances, materials, and finishes of the bonus units if not exactly the same as the market-rate units; and
i.
Any other relevant information requested by the Village.
5.
Workforce Housing Density Bonus Criteria.
a.
Workforce Housing units shall be built on the same site as the proposed development.
b.
Workforce Housing units must be reasonably dispersed throughout the project, and not clustered together or segregated in any way, from the market-rate units.
c.
On average, Workforce Housing units must contain the same number of bedrooms and quality of construction as the other market-rate units in the development.
d.
Workforce Housing units shall be developed simultaneously with, or prior to the development of the other market-rate units.
e.
If the development is phased, the phasing plan shall provide for the construction of Workforce Housing units proportionately and concurrently with the market-rate units.
f.
The interior building materials and finishes of the Workforce Housing units shall be substantially the same type and quality as market-rate.
g.
Workforce Housing units aimed at workers considered essential (such as educators, first responders (e.g., police and firefighters), and service workers) shall be prioritized.
6.
Workforce Housing Density Bonus Agreement.
a.
Prior to the approval of any development order or permit for any development in which the Workforce Housing density bonus is requested, the applicant shall enter into a Workforce Housing Density Bonus Agreement with the Village, which shall set forth the commitments and obligations of the applicant to ensure compliance with these regulations.
b.
The applicant shall execute all documents deemed necessary by the Village in a form to be established by the Village Attorney, including without limitation, restrictive covenants, deed restrictions and related instruments including requirements for income qualification for tenant of rental units.
7.
Maintenance of Rent Affordability.
a.
On an annual basis, the Village Manager, or designee, shall make available copies of updated AMI ranges, and associated rental limits applicable to Workforce Housing units in North Bay Village based on official information available from Miami-Dade County or U.S. Department of Housing and Urban Development.
b.
The time period during which the rental rate for a Workforce Housing unit under these regulations is required to be controlled within a specified affordability range is 30 years.
c.
Workforce housing rental unit owners are required to submit an annual report to the Village on or before January 30 of each year, verifying that all designated Workforce Housing units the won are being rented at rates affordable to area households with annual incomes within the affordability ranges established in this Code. Documentation may be in the form of a notarized affidavit stating the current annual rent for each unit together with collaborating documentation, or other form acceptable to the Village Manager.
8.
Violations.
a.
It is a violation of this ordinance to:
(1)
Fall to file required affidavits or audits when required.
(2)
Rent or lease a Workforce Housing unit to a person or family that is not income eligible as required by this Code.
(3)
Knowingly give false or misleading information relating to this program to any Village employee.
(4)
Participate, in any way, in the lease or rental of a Workforce Housing unit which violates any provision of this Code or a Workforce Housing Density Bonus Agreement.
b.
The fine for each violation of these provisions shall be in conformance with the procedures and fines in Chapter 153 of the North Bay Village Code of Ordinances, as amended.
c.
Appeals to any violations issued by North Bay Village under these regulations shall be processed pursuant to the North Bay Village Code Compliance appeals procedure in Chapter 153, North Bay Village Code of Ordinances, as amended.
(Ord. No. 2022-013, § 2(Exh. A), 11-2-22; Ord. No. 2023-012, § 2(Exh. A), 9-29-23; Ord. No. 2024-004, § 2(Exh. A), 3-12-24)
The provision of workforce housing units within a for-sale development may be satisfied by a developer paying an "in-lieu" fee to the Village to be deposited in the Village's Resilient Housing Trust fund. The "in-lieu" fee calculation shall be calculated at the time of site plan approval and the developer shall determine whether to satisfy their workforce housing requirement pursuant to this section or provide them on-site prior to site plan approval and inform the Village accordingly. The Developer shall be responsible for providing the Village with the necessary data and calculations for their review. This program is intended to allow the Village flexibility in the provision and maintenance of workforce housing.
A.
Definitions. This subsection provides definitions for terms used in this section that are technical in nature. If there is a conflict between this section and other definitions provided in the Code, this subsection shall take precedence.
1.
Affordable Purchase Price shall be the most recent estimated purchase price for a family of four at 100 percent of median family income issued by Miami-Dade County.
2.
Village-wide median sales shall be established by the Developer, subject to review and approval by the Village Manager or their designee, at the time the project receives site plan approval. The figure shall be established by averaging the sales price of apartments sold in the Village over the past two-years. The sales data shall be based on the Miami-Dade County Property Appraiser's public records and sales under $5,000 shall not be taken into account.
B.
Fee Calculation. The "in-lieu" fee shall be calculated at the time of site plan approval as follows:
Village-wide median sales price
(minus)
Affordable Purchase Price
(equals)
Payment in-lieu per unit.
C.
Fee Collection. Should the developer elect to satisfy the provision of workforce housing pursuant to this section they shall have the option to select between the following payment options:
1.
10% of the "in-lieu" fee within 30 days of site plan approval, with the remaining 90% due to the Village prior to the issuance of the project's master building permit; or
2.
35% of the "in-lieu" fee within one year of site plan approval, with the remaining 65% due to the Village prior to the issuance of the project's master building permit.
Developer shall inform the Village of which payment option they have selected at the time of site plan approval. All payments to the Village are non-refundable and any density obtained on their basis is conditioned upon the applicant or property owner maintaining the site plan approval as valid. If the site plan approval expires, both the density and any payments made thereon shall be forfeited to the Village.
D.
Resilient Housing Trust Fund. The Village shall establish a Resilient Housing Trust fund for the purpose of collecting all funds related to Village's workforce housing programs pursuant to this article.
1.
The funds collected for deposit in the Resilient Housing Trust fund may be utilized for the following workforce housing programs:
a.
Rental Assistance Program. The Village shall be permitted to establish a rental assistance program in which the funds collected pursuant to this section may be used to fund grants to assist qualified households with rental payments to help maintain affordability in the Village. To qualify for a grant, a household must submit an application, in a form to be provided by the Village Manager and Village Attorney, establishing their status as a qualified household. Then the Village Manager or their designee shall hold a lottery to determine who should receive the available grants. Priority shall be given as provided in section 8.10.2(5).
b.
Homeowner Assistance Program. The Village shall be permitted to establish a homeowner assistance program in which the funds collected pursuant to this section may be used to fund grants to assist qualified households with homeowners' or condominium association maintenance fees and special assessments to maintain affordability in the Village. To qualify for a grant, a household must submit an application, in a form to be provided by the Village Manager and Village Attorney, establishing their status as a qualified household. Then the Village Manager or their designee shall hold a lottery to determine who should receive the available grants. Priority shall be given as provided in section 8.10.2(5).
c.
Down Payment Assistance. The Village shall be permitted to establish a down payment assistance grant program in which the funds collected pursuant to this section may be used to fund grants to assist qualified households with down payments to purchase property within the Village. To qualify for a grant, a household must submit an application, in a form to be provided by the Village Manager and Village Attorney, establishing their status as a qualified household. Then the Village Manager or their designee shall hold a lottery to determine who should receive the available grants. Priority shall be given as provided in section 8.10.2(5).
d.
Rehabilitation Assistance Grant Program. The Village shall be permitted to establish a rehabilitation assistance grant program in which the funds collected pursuant to this section may be used to fund grants to assist qualified households with the rehabilitation of owner-occupied units. To qualify fora grant, a household must submit an application, in a form to be provided by the Village Manager and Village Attorney, establishing their status as a qualified household. Then the Village Manager or their designee shall hold a lottery to determine who should receive the available grants. Priority shall be given as provided in section 8.10.2(5).
e.
Administration; Consulting Services. The Village may use a portion of the trust fund monies to administer the fund or retain consulting services, through resolution of the Village Commission, to administer the provisions of this section and/or provide the Village with strategic advice regarding the provision of workforce housing within its jurisdiction.
2.
The Village Commission may from time to time authorize additional programs which may be funded through the Resilient Housing Trust fund by resolution.
3.
The Village Manager, or their designee, shall provide the required supervision for the Resilient Housing Trust account and shall oversee the account, with all expenditures made pursuant to the Village Charter and Code. A financial status report on the Resilient Housing Trust account shall be provided to the Village Commission on or before October 1 of each calendar year.
E.
Essential Worker Prioritization.
1.
The programs created pursuant to sub-section 4 shall give priority to the following types of essential workers, provided that any essential worker household applying for assistance under such programs shall qualify pursuant to the income guidelines established in Section 8.10.1 of the ULDC:
a.
North Bay Village Police, Fire Department employee or general employees of North Bay Village.
b.
Miami-Dade County Public School employees working at a school in North Bay Village.
c.
Licensed health professionals working in North Bay Village.
d.
Residents employed by North Bay Village.
2.
The priority list may be modified or supplemented from time to time by Village Commission resolution; however, nothing shall preclude other eligible households from applying for the workforce housing programs and being considered for the Village's workforce housing programs.
; Ord. No. 2022-012, § 2, 11-2-22 [put in order in HN]
(Ord. No. 2023-012, § 2(Exh. A), 9-29-23; Ord. No. 2024-004, § 2(Exh. A), 3-12-24)
A.
Purpose and intent. In order to provide for adjustment in the relative locations of uses and buildings of the same or of different classifications; to promote the usefulness of these regulations as instruments for fact-finding, interpretation, application, and adjustment; and to supply the necessary flexibility to their efficient operation, use exceptions are permitted by these regulations.
B.
Use exceptions permitted. The Village Commission may permit the following buildings and uses as use exceptions, provided there are clear indications that such exceptions will not substantially affect adversely the uses permitted in these regulations of adjacent property.
1.
Structural alterations to special uses, after these uses are approved by the Village Commission.
2.
Other special uses as may be enumerated in specific Zoning Districts.
3.
Assisted Living Facility or Nursing Facility.
4.
Temporary sales center/marketing office for a period of up to twelve (12) months, renewable administratively by the Village Manager for up to two (2) additional twelve-month periods for a maximum of thirty-six (36) months.
5.
Farmers' market.
6.
Uses that provide a public benefit (parks, Open Space, and other public amenities) that will not adversely affect the existing adjacent uses, the uses permitted in the zoning district of the subject property, or the uses permitted in the zoning district of the adjacent properties.
7.
Parking garages as stand-alone, principal structures in multifamily residential zoning districts, provided their purpose is to serve adjacent multifamily residential development and subject to the design standards established in Section 9.3.E.
8.
Temporary construction trailers and/or units used for the storage of construction materials, following issuance of a development order for a project, subject to the following limitations:
a.
The placement, size, and access to all trailers, parking, landscaping, buffering, and lighting, shall comply with all applicable zoning and building requirements.
b.
Construction trailers shall require a building permit. If utilities are needed, electric and/or plumbing permits shall be required.
c.
Construction trailer permits shall only be issued in connection with permitted building construction, rehabilitation, or demolition activity.
d.
No sales or leasing shall be conducted from temporary construction trailers.
e.
The placement of construction trailers through a Use Exception shall be permitted for a period of twelve (12) months, renewable administratively by the Village Manager for periods of twelve (12) additional months at a time, until the project is completed.
f.
All approved construction trailers, storage units and/or related outdoor storage, construction fences and similar uses and structures shall be removed from the property prior to the issuance of a certificate of completion or the first Certificate of Occupancy, whichever occurs first.
C.
Expiration of use exception. After the Village Commission has approved a use exception, the use exception shall expire after two years, measured from the date of final Commission action, if no substantial construction or change of use has taken place in accordance with the plans for which the use exception was granted.
D.
Reapplication for use exception. No application for a use exception shall be filed less than one year after the date of disapproval by the Village Commission of an application for a use exception involving the same land or any portion thereof.
(Ord. No. 2019-003, § 2(Exh. A), 3-12-19; Ord. No. 2024-004, § 2(Exh. A), 3-12-24)
Properties in the RM-70 and CG districts may request to purchase additional height from North Bay Village as follows:
A.
Approval of bonus height. Requests for bonus height shall be made concurrent with site plan review and shall be reviewed pursuant to the same criteria as site plans, provided in Section 5.8 ULDC. The Village Planning and Zoning Board shall review the request and provide a recommendation to the Village Commission. The Village Commission shall have the authority to approve or deny any bonus height request at a site plan review public hearing. Bonus heights are not permitted within the T6 transect zones.
B.
Maximum bonus height.
1.
Except for undersized parcels in RM-70, the maximum building height (with bonus) that may be approved according to this Section is 240 feet.
2.
Properties in the RM-70 District that receive development rights pursuant to Section 8.13 may obtain approval from the Village Commission for additional building height of up to thirty percent (30%) above the maximum permitted height (up to 312 feet with the application of all bonuses) to accommodate the transferred density.
C.
Fees.
1.
Bonus height Community Contribution Fees shall be paid to North Bay Village in the following manner: a fifty percent (50%) nonrefundable deposit shall be paid to the Village within 90 days of site plan approval by the Village Commission, and the balance shall be paid concurrently with the issuance of a Building Permit. No building permit shall be issued by the Village until the applicant has paid the fees calculated pursuant to this section.
2.
The Community Contribution Fees shall be assessed and payable to the Village in accordance with the Village's adopted Fee Schedule, as may be amended from time to time.
3.
Community Contribution Fees collected according to the bonus height program shall be utilized for the purchase of future Village parks, land for additional public Open Space, other public amenities, or infrastructure projects.
4.
The bonus fees shall be paid in the following manner:
a.
Applicant will pay to the Village a deposit equal to 10% of the total bonus height or density fee (the "Bonus Fee") within ninety (90) days of the date the site plan approval becomes final and non-appealable. The deposit will be applied to the total Bonus Fee due.
b.
The deposit payment shall be non-refundable.
c.
The deposit will be a credit against the Bonus Fee and such credit will run with the land. Without limiting the foregoing, the deposit will run in favor of all owners and successor owners of the subject property and to all site plan approvals regarding the property, even if one or more site plan approvals expire.
d.
The development agreement to be executed and recorded in connection with the site plan approval for the corresponding project shall contain appropriate language providing that the Bonus Fee deposit running with the land as provided in item 3 above.
(Ord. No. 2019-001A, § 2(Exh. A), 2-28-19; Ord. No. 2019-009, § 2, 7-22-19; Ord. No. 2022-05, § 2, 3-8-22; Ord. No. 2022-012, § 3, 11-2-22; Ord. No. 2023-011, § 3(Exh. B), 9-28-23; Ord. No. 2024-004, § 2(Exh. A), 3-12-24)
Editor's note— Ord. No 2019-001A was adopted Feb. 28, 2019, but was not executed by the Mayor, Clerk, and Village Attorney until Feb. 28, 2023.
For projects within the T6-24, T6-24MU and T6-30 transect zones along Kennedy Causeway, the base density shall be 70 dwelling units per acre. The total density including bonuses shall not be approved for more than 150 dwelling units per acre. See Section 8.10.1.
A.
Community contribution Fees stipulated in Section 8.13.C. below shall be payable to the Village for each additional unit of density above the base density. See Section 8.10.1. for specific requirements.
(Ord. No. 2022-013, § 3(Exh. B), 11-2-22; Ord. No. 2024-004, § 2(Exh. A), 3-12-24)
Editor's note— Ord. No. 2022-013, § 3(Exh. B), adopted Nov. 2, 2022, amended the title of § 8.12.5 to read as herein set out. The former § 8.12.5 title pertained to density bonus program.
Properties in the RM-70 district may request to purchase additional Dwelling Units from North Bay Village, allowing for increased density and height, as follows:
A.
Sending Sites. The sending sites shall be land currently owned by the Village. Any and all Village-owned property shall be considered as an eligible TDR sending or donor site. Total transferred density allocation within the Village shall not exceed the total developable potential of the sending sites. The Planning and Zoning Official shall track and keep an official tally of the development rights available for transfer, which shall be updated with each transaction. Except as set forth in subsection E, density rights transfer requests shall be addressed on a first-come, first-served basis. A copy of each update shall be filed by the Village Clerk. Upon issuance of a building permit for a project on an eligible receiving site that utilizes approved transferred units, the Village shall record a declaration of restriction on its property, recognizing the transfer of units and the remaining number of transferrable units on the sending site.
B.
Receiving Sites. Density Rights from Harbor Island may be and are encouraged to be transferred to receiving sites outside of Harbor Island.
C.
Approval of Transfer of Density Rights and Additional Building Height. Except as set forth in subsection E, requests for transfer of density rights shall be made concurrent with site plan review and shall be reviewed pursuant to the same criteria as site plans, provided in Section 5.8 of the ULDC. The resulting density shall not exceed the limitations set forth in the comprehensive plan and this code and building height following the use of transferred units shall not exceed thirty percent (30%) of the maximum building height (including all other available bonuses) of the receiving site. The Village Planning and Zoning Board shall review the request and provide a recommendation to the Village Commission. The Village Commission shall have the authority to approve or deny any additional density and related additional building height during site plan.
D.
Fees.
1.
Except as set forth in subsection E, the applicant shall pay a Community Contribution Fee per transferred density right (equivalent to one Dwelling Unit) to North Bay Village within 90 days of site plan approval by the Village Commission in accordance with the Village's adopted Fee Schedule, as may be amended from time to time, as follows:
a.
Fifty percent (50%) of the total assessed Community Contribution Fee shall be payable within ninety (90) days of Commission approval of site plan.
b.
Fifty percent (50%) of the Community Contribution Fee shall be payable prior to or upon the issuance of a building permit.
2.
Payments of Community Contribution Fees for transferred density rights shall be nonrefundable.
3.
Should the Site Plan approval expire, the transferred density rights shall revert to North Bay Village, except as provided in subsection E below.
4.
Community Contribution Fees collected according to the TDR program shall be utilized by the Village for the purchase of future Village parks, land for additional public Open Space, other public amenities, or infrastructure projects.
5.
The number of Dwelling Units that the applicant must purchase to achieve the desired density shall be derived from the following calculation:
(number of dwelling units at total density including TDR allocation) minus
(number of dwelling units allowed according to base density) equals
(number of units that must be purchased)
6.
Community Contribution Fees shall be reviewed annually by the Village Commission on the recommendation of the Village Manager during the budget process.
E.
Window for Transfer of Uncommitted TDRs.
1.
Competitive Process. At any time and for any reason, the Village Commission may open a competitive process to accept proposals for conveyance of TDRs the Village owns that have not been approved for transfer in connection with an approved site plan. The competitive process shall be publicly noticed, and any Village property owner shall be entitled to submit a proposal. The process shall set forth the terms of evaluation of proposals, but in no event shall the cost component of proposals be accepted if they are for less than the then-applicable Community Contribution Fee. The Village may award some or all of its available TDRs to one or more proposers, or to one or more properties of any individual proposer, and may award more TDRs to a property than the maximum total density permitted in the comprehensive plan.
2.
Payment. The process shall set forth a date upon which the cost of awarded TDRs shall be paid to the Village, which in no event shall be more than one-hundred-fifty (150) days from the date of award. Once payment of the full amount is made on or before the due date set forth in the competitive process documents, awarded TDRs shall be transferred to the property owned by the awarded proposer, if the awarded proposer does not make timely payment on or before the due date, the award shall be forfeit and the Village may terminate the competitive process or award such TDRs to the next highest ranked proposer.
3.
Records. As a condition of transfer, the Village shall record a declaration of restriction on its property, recognizing the awarded TDRs and the remaining number of TDRs on the sending site, if any. The Planning and Zoning Official shall track and keep an official tally of the awarded TDRs to each property.
4.
Subsequent Conveyance of TDRs. In consideration of the accelerated payment of costs for TDRs through any award under a competitive process, transferred TDRs may be conveyed to any eligible receiving site under this Section 8.13 for use in connection with development, subject to the limitations set forth in the comprehensive plan. As a condition of conveyance, any conveyor of TDRs shall (a) pay the Village $2,500 per conveyed TDR as an administration fee; and (b) record a declaration of restriction on its property acceptable to the Village Attorney, recognizing the conveyed TDRs and the remaining number of TDRs on the conveying site, if any. The Planning and Zoning Official shall track and keep an official tally of TDRs, including the property they are conveyed from and the property they are conveyed to.
5.
Site Plan. Irrespective of an award or purchase of TDRs under this subsection, any development in the Village shall be subject to site plan review and approval by the Village Commission, and any other necessary approvals as required by this ULDC, and no award or purchase of TDRs recognized in this subsection shall be construed as entitling an applicant to site plan approval for a specific number of units, height, or floor area. Owners of TDRs which acquire TDRs through this subsection shall be limited to the maximum density permitted under the comprehensive plan and this code for a given property at time of site plan approval irrespective of how many TDRs they may own or have assigned to the property in the record maintained by the Planning and Zoning Official.
(Ord. No. 2019-001A, § 2(Exh. A), 2-28-19; Ord. No. 2019-009, § 2, 7-22-19; 2022-05, § 2, 3-8-22; Ord. No. 2022-012, § 4, 11-2-22; Ord. No. 2023-011, § 3(Exh. B), 9-28-23; Ord. No. 2024-004, § 2(Exh. A), 3-12-24; Ord. No. 2024-006, § 2(Exh. A), 6-11-24)
Editor's note— Ord. No 2019-001A was adopted Feb. 28, 2019, but was not executed by the Mayor, Clerk, and Village Attorney until Feb. 28, 2023.
All properties in the T6 and RM-70 districts contiguous to Biscayne Bay and its natural tributaries shall provide and maintain a shoreline walkway adjacent to and parallel to the riparian Right-of-Way, designed and constructed in a manner consistent with the Island Walk Standards referenced in Section 8.17.O., as may be amended from time to time. The Island Walk shall be provided continuously along the water for the full width of the property. In addition, all properties in the RM-70 district contiguous to Biscayne Bay are subject to the following:
A.
Prior to, or concurrent with, site plan approval, the Village Commission shall have the authority to allow the Island Walk to be provided in the riparian right-of-way in lieu of providing the shoreline walkway upland on the subject property, conditional on approval by DERM.
B.
Except as otherwise provided in these regulations, a public access connection walkway of a width consistent with the Island Walk Standards shall be provided and maintained between the shoreline walkway and the public Right-of-Way.
C.
All developments contiguous to Biscayne Bay and its natural tributaries shall be subject to review and approval by the Miami-Dade County Shoreline Review Committee.
D.
Easements for both the Island Walk and public access connection walkway shall be dedicated and recorded prior to issuance of a Building Permit. The easement for the Island Walk shall provide connection to the Island Walk of contiguous properties.
E.
The Island Walk and public access walkway shall be open to the public daily, during hours determined by the Village. Neither the Island Walk facilities or public connection walkway shall be fenced in or closed off in any way that prevents or precludes access to or connectivity to adjacent (existing or future) segments of the Island Walk.
F.
All design features including hardscape and softscape treatments, furnishings, lighting, signage, artwork, etc. shall be consistent with the Island Walk Standards.
G.
All shoreline accessibility facilities constructed according to this section shall be ADA compliant.
(Ord. No. 2019-001A, § 2(Exh. A), 2-28-19; Ord. No. 2023-011, § 3(Exh. B), 9-28-23; Ord. No. 2024-004, § 2(Exh. A), 3-12-24)
Editor's note— Ord. No. 2019-001A, § 2(Exh. A), adopted Feb. 28, 2019, enacted a new § 8.14 and renumbered the former § 8.14, supplemental use regulations, and § 8.15, supplemental development standards as set out herein. In that Ord. No. 2019-001A was not executed by the Mayor, Clerk and Village Attorney until Feb. 28, 2023, § 8.16, sea wall standards, and § 8.17, Island Walk standards, previously codified by Ord. Nos. 2021-006 and 2021-002, respectively, have been renumbered as §§ 8.17 and 8.18 as set out herein. The historical notations have been retained with the amended provisions for reference purposes.
Prior to the approval of a site plan that requests bonus density pursuant to Section 8.10, and Section 8.10.1., bonus height pursuant to Section 8.12, and/or the transfer of development rights pursuant to Section 8.13, the Village and the owner of the subject property shall agree on tentative terms for a standard Development Agreement, which shall be presented to the Village Commission as support documentation for the site approval request. The Development Agreement shall reflect any additional terms imposed by the Village Commission as conditions of approval and shall be executable by the Village and the owner of the subject property following Commission approval. The Development Agreement, along with any accompanying development orders, shall vest the project with any density, height, and/or TDR approvals, notwithstanding any future amendments to either the Code or Comprehensive Plan reducing any applicable bonus or modifying the TDR process, provided that the project has not had a failure to commenced as provided herein. The agreement shall contain and address the following information, when applicable:
A.
Statement of ownership and legal description;
B.
Permitted uses and special exceptions;
C.
Minimum dimensional requirements. Such requirement shall include Lot Area and width, Setbacks, Building Height, minimum Floor Area, Accessory Structures, and other dimensional information pertinent to the project;
D.
Landscaping, parking, and signage requirements;
E.
Applicable design guidelines. The applicant shall submit as a requirement of the master development agreement, conceptual rendering, plans, schematics, and/or other design document, as may be necessary to illustrate that the project is meeting the design guidelines for the district in which the project is located;
F.
Project phasing;
G.
The method by which common areas facilities and areas visible to the public shall be maintained. This includes whether the project will be owner operated or under the control of condominium association, special taxing district, and/or community development district;
H.
The maximum number of Dwelling Unit[s], maximum square footage of any commercial uses, and/or the maximum number of hotel rooms;
I.
Improvements to infrastructure that may be required by the UDLC and/or Miami-Dade County by or agreed upon by the Village and the owner of the subject property;
J.
Expiration date; and
K.
Any other information deemed pertinent by the planning and zoning official or Village Commission. The Planning and Zoning Official may waive any of the master development agreement submittal items or portions of items.
The applicant or its successor in interest shall submit yearly progress reports to the Village beginning within six (6) months of the date of approval and within one (1) year thereafter. Pursuant to Section 5.10 of the UDLC, all site plan approvals for which construction has not been initiated shall expire two (2) years from the date of final approval, unless otherwise extended by Commission at initial site plan approval or upon request for extension. Development agreements entered into pursuant to this section shall follow the time frame of the corresponding site plan approval and shall also expire concurrently with the expiration of the site plan approval. An extension of the project site plan pursuant to Section 5.10 of the UDLC shall also extend the development agreement for the corresponding project. Initiating construction shall mean the submission of an application for a building permit for the project.
(Ord. No. 2019-009, § 2, 7-22-19; Ord. No. 2022-013, § 3(Exh. B), 11-2-22; Ord. No. 2024-004, § 2(Exh. A), 3-12-24)
Editor's note— Ord. No. 2019-009, § 2, adopted July 22, 2019, enacted a new § 8.15 and renumbered the former § 8.15, supplemental use regulations, and § 8.16, supplemental development standards, as §§ 8.16 and 8.17 as set out herein. In addition, § 8.17, sea wall standards, and § 8.18, Island Walk standards, previously codified by Ord. Nos. 2021-006 and 2021-002, respectively, have been renumbered as §§ 8.18 and 8.19 as set out herein. The historical notations have been retained with the amended provisions for reference purposes.
APPLICATION OF DISTRICT REGULATIONS
A.
Compliance with regulations.
1.
No land or water area may be used except for a purpose permitted in the district in which it is located.
2.
No Building shall be erected, converted, enlarged, reconstructed, moved, or structurally altered, nor shall any building or part thereof be used except for a use permitted in the District in which the building is located.
3.
No building shall be erected, converted, enlarged, reconstructed, moved, or structurally altered to exceed the height limit herein established for the district in which the building is located.
4.
No building shall be erected, converted, enlarged, reconstructed, moved, or structurally altered except in conformity with the area regulations of the district in which the building is located.
5.
No building shall be erected, converted, enlarged, reconstructed, moved, or structurally altered except in conformity with the off-street parking and loading regulations of the district in which the building is located.
6.
No building shall be erected, converted, enlarged, reconstructed, moved, or structurally altered except in conformity with the floor area, floor area ratio, or open space ratio regulations of the district in which it is located.
B.
Encroachment reduction of lot area. The minimum Yards, parking space, and Open Spaces, including lot area per family, required by these regulations for each and every building existing at the time of the passage of these regulations or for any building hereafter erected, shall not be encroached upon or considered as required yard or open space for any other building, except as hereinafter provided, nor shall any lot area be reduced below the requirements of these regulations.
C.
Accessory buildings; prior construction. No Accessory Building, Structure, or dock shall be constructed upon a Lot until the construction of the main use building has actually commenced. No accessory building shall be used unless the main use building on the lot is also being used.
D.
Location on a lot required. Every Building or Structure hereafter erected, moved, or structurally altered shall be located on a lot as herein defined, and except as hereinafter provided, in no case shall there be more than one principal building on one lot.
(Ord. No. 2024-004, § 2(Exh. A), 3-12-24)
A.
RS-1 Low Density Single-Family Residential District.
1.
Purpose and intent. The purpose of this District is to provide for low-density single-family residential development in a spacious setting, together with other principal uses as may be approved as use exceptions and such accessory uses as may be necessary and compatible.
2.
Uses permitted.
a.
Single-Family Residential Dwellings.
b.
Duly licensed Home-based Businesses pursuant to Section 559.955, Florida Statutes.
c.
Accessory Uses and Structures per Section 8.16.A.
3.
Use exceptions as may be approved under Section 8.11.
4.
Prohibited uses.
a.
All other uses not specifically or provisionally permitted herein.
5.
Site development standards.
a.
Minimum lot size:
(1)
Area—6,000 square feet.
(2)
Frontage—60 feet.
(3)
Refer to subsection 5.f. below for lot area incentive.
b.
Minimum yard setbacks:
c.
Maximum building height: Maximum building height shall not to exceed 30 feet above Base Flood Elevation (BFE) plus minimum freeboard. Where a Structure is elevated pursuant to subsection 10.5.B., the ground level below the first elevated floor shall be designed in accordance with the requirements of subsection 8.10.B.5.e.
d.
Minimum Floor Area:
(1)
One story—2,000 square feet.
(2)
Two story—2,600 square feet.
e.
Lot Coverage:
(1)
Maximum lot coverage - 60% of the total Lot Area.
(2)
Pervious Areas: Up to 25% of the combined square footage of all parking areas, driveways, walkways, patios and terraces built with permeable materials may be subtracted from the maximum calculated impervious coverage on a lot, if approved by the Director of Public Works (or designee), based on the porosity of the material used, and the amount (percent) of annual rainfall that will pass through the material.
(3)
Green Space: A minimum of twenty percent (20%) of the total Lot Area shall be maintained as unobstructed Green Space, and shall be landscaped. No less than forty percent (40%) of the space in the Front Yard area shall be unobstructed, landscaped Green Space. For maximum vehicular and impervious area allowed in the Front Yard of single-family residential properties, refer to Section 9.3.E.2.c.
f.
The clearance of an Understory created by elevating a single-family residential building in accordance with subsection 10.5.B. shall not exceed ten (10) feet, measured from Grade to the underside of the first-floor slab. Only the following Accessory Uses shall be allowed in the Understory space:
(1)
Unenclosed parking.
(2)
Vestibule to the living area by means of a stairway or elevator, not to exceed 100 square feet in area. No other habitable space is permitted.
(3)
Enclosed garage or storage space not to exceed 500 square feet, provided that the walls are designed so as not to impede the flow of water and the space is unfinished and unpartitioned.
(4)
The perimeter of an understory space may be visually screened with landscape material selected, installed, and maintained in accordance with the landscaping standards of Division 4, Landscaping, of this ULDC, and Chapter 18A of the Miami-Dade County Landscaping Code.
B.
RS-2 Medium Density Single-Family Residential District.
1.
Purpose and intent. The purpose of this District is to provide for medium-density single-family residential development in a relatively spacious setting, together with other principal uses as may be approved as use exceptions and such accessory uses as may be necessary and compatible.
2.
Uses permitted.
a.
Single-Family Residential Dwellings.
b.
Duly licensed Home-based Businesses pursuant to Section 559.955, Florida Statutes.
c.
Accessory Uses and Structures per Section 8.16.A.
3.
Use exceptions as may be approved under Section 8.11.
4.
Prohibited uses.
a.
All other uses not specifically or provisionally permitted herein.
5.
Site development standards.
a.
Minimum lot size:
(1)
Area—6,000 square feet.
(2)
Frontage—60 feet.
(3)
Refer to subsection 5.f. below for lot area incentive.
b.
Minimum yard setbacks:
c.
Maximum building height:
(1)
Maximum building height shall not exceed 30 feet above Base Flood Elevation (BFE) plus minimum freeboard. Where a Structure is elevated pursuant to subsection 10.5.B., the ground level below the first elevated floor shall be designed in accordance with the requirements of subsection 8.10.B.5.e.
(2)
Privacy between neighboring residential units should be maintained by placing and orienting windows of second floors so that they do not face directly opposite windows in adjacent units.
d.
Lot coverage:
(1)
Maximum lot coverage - 55% of the total Lot Area.
(2)
Pervious Areas: Up to 25% of the combined square footage of all parking areas, driveways, walkways, patios, and terraces built with permeable materials may be subtracted from the maximum calculated impervious coverage on a lot, if approved by the Director of Public Works (or designee), based on the porosity of the material used, and the amount (percent) of annual rainfall that will pass through the material.
(3)
Green Space: A minimum of twenty percent (20%) of the total Lot Area shall be maintained as unobstructed Green Space and shall be landscaped. A minimum of forty percent (40%) of the Front Yard area shall be Green Space. For regulations relating to driveways/parking area and impervious area allowed in the Front Yard of single-family residential properties, refer to Section 9.3.E.2.C.
e.
Understory Area. The clearance of an Understory created by elevating a single-family residential building in accordance with subsection 10.5.B. shall not exceed ten (10) feet, measured from Grade to the underside of the first-floor slab. Only the following Accessory Uses shall be allowed in the Understory space:
(1)
Unenclosed parking.
(2)
Vestibule to the living area by means of a stairway or elevator, not to exceed 100 square feet in area. No other habitable space is permitted.
(3)
Enclosed garage or storage space not to exceed 500 square feet, provided that the walls are designed so as not to impede the flow of water and the space is unfinished and unpartitioned.
(4)
The perimeter of an understory space may be visually screened with landscape material selected, installed, and maintained in accordance with the landscaping standards of Division 4, Landscaping, of this ULDC, and Chapter 18A of the Miami-Dade County Landscaping Code.
f.
Lot area incentive: A property with a Lot Area of at least 13,500 square feet and a Lot Frontage of at least 120 feet, shall be permitted a maximum building Height of 36 feet above Base Flood Elevation (BFE) plus minimum freeboard, and a maximum Lot Coverage of 60% of the Lot Area, subject to the following minimum setback requirements:
C.
RM-40 Medium Density Multiple Family Residential District.
1.
Purpose and intent. The purpose of this District is to provide for medium density multi-family residential development, together with other principal uses as may be approved as use exceptions and such accessory uses as may be necessary and compatible. This district is intended to be utilized as a transitional buffer between single-family residences and high-density apartments or commercial uses.
2.
Uses permitted.
a.
Multi-Family Residential Dwellings.
b.
Management offices within Structures containing eight or more Dwelling Units.
c.
Duly licensed Home-based Businesses pursuant to Section 559.955, Florida Statutes.
d.
Accessory uses and structures per Section 8.16.A.
3.
Prohibited uses.
a.
All other uses not specifically or provisionally permitted herein.
4.
Site development standards.
a.
Minimum lot size.
(1)
Area—10,000 square feet.
(2)
Frontage—100 feet.
b.
Minimum yard setbacks.
c.
Maximum density. Forty (40) efficiency or one-bedroom Dwelling Units per acre of net lot area. The following required amount of lot area per unit shall determine the number of other dwelling unit types permitted.
d.
Maximum building height.
(1)
45 feet or four (4) stories, whichever is less.
e.
Exclusion of grade level parking from height limitation.
(1)
A grade level of parking, not exceeding ten (10) feet in height, shall not be included in this height limitation.
(2)
The grade level parking floor may include other nonresidential uses, including laundry rooms, recreational rooms, storage rooms, and an office for building management.
f.
Minimum pervious area: Twenty-five percent (25%) of the total lot area shall be retained as pervious area and shall be landscaped and maintained.
g.
Minimum floor area.
5.
Single-family homes approved under the provisions of Section 8.11 consistent with the setback provisions of the RS-1 (Low Density Single-Family Residential District).
6.
Use exceptions as may be approved under Section 8.11.
D.
RM-70 High Density Multiple Family Residential District.
1.
Purpose and intent. The purpose of this district is to promote the efficient use of land and to encourage development of attractive, pedestrian-friendly, sustainable, and resilient high-density multifamily residential areas. This zoning provides designated areas for high-density multifamily residential Structures, together with other Principal Uses as may be approved as Use exceptions and permitted Accessory Uses pursuant to Section 8.16.A., as may be necessary and complementary to, as well as compatible with a permitted Use.
2.
Use permitted.
a.
Multi-Family Residential Dwellings, along with property-specific Amenities.
b.
Duly licensed Home-Based Businesses pursuant to Section 559.955, Florida Statutes.
c.
Supplementary uses as permitted by Section 8.16.A.1.b., provided they are Ancillary in nature to the Principal Use.
3.
Prohibited uses.
a.
All other uses not specifically or provisionally permitted herein.
4.
Site development standards.
a.
Minimum lot size.
(1)
Area - 11,200 square feet.
(2)
Frontage - 80 feet.
b.
Minimum yard setbacks.
(1)
Waterfront setback encroachments. Cantilevered awnings and entry canopies may encroach up to seven (7) feet into a waterfront setback, up to but not extending into, the Island Walk Easement. Above the first story of the Building, cantilevered balconies, bay windows, and roofs may encroach up to seven (7) feet into a waterfront Setback, up to but not extending into, the Island Walk Easement.
(2)
Balconies. Exterior balconies/terraces and covered walkways above the ground floor, excluding rooftops and other non-covered areas, may extend into the side Setbacks a maximum of twenty-five percent (25%) of the allowable setback measurement but may not extend beyond the Pedestal of a Building with a pedestal and Tower design.
(3)
Flex setback for buildings with a pedestal and tower design. To promote creative design solutions to the Building configuration, the Village Commission may allow a building Tower (and Pedestal, for sites involving only one Lot) to encroach into the Setbacks as per the following "flex box" criteria:
(a)
Pedestal (aka podium) shall be defined as that portion of a building up to 100 feet in height which contains the building's structured parking and amenities.
(b)
Tower shall be defined as that portion of a building that starts at the top of the pedestal or podium.
(c)
The maximum floor plate for the tower portion of buildings with a pedestal and tower design shall be 17,500 square feet.
(d)
The tower shall be stepped back an additional ten (10) feet from the face of the pedestal along any street frontage.
(e)
The maximum achievable floor area is calculated based upon the buildable "box" allowed under the regularly applicable setback regulations and the allowable height (the "Box Floor Area").
(f)
The building may be designed to encroach onto regularly applicable setbacks, with the exception of the side setback that accommodates the View Corridor, provided the encroachment does not exceed thirty percent (30%) of the required setback and the total gross floor area of the building does not exceed the Box Floor Area. In calculating the total gross floor area, all square footage of any structure (whether exterior or interior) shall be included.
(g)
In no instance may any encroachment into any side yard setback be longer than one-third (⅓) of the distance between the front and rear setback. Balconies with railings or other physical containment, which do not exceed 42 inches in height are not included in the measurement of the wall length.
c.
Maximum density. Pursuant to the Village's Comprehensive Plan, the maximum base density permitted in all RM-70 properties shall be seventy (70) units to the acre, except for properties receiving transferred development rights pursuant to Section 8.13, which shall be permitted to exceed the maximum base density by no more than thirty percent (30%). Receiver sites may be developed as otherwise permitted by this Unified land Development Code, as may be amended from time to time, in combination with the development rights available to the site, provided that the overall district density is consistent with, and does not exceed, the overall density allowable by the Village's Comprehensive Plan.
d.
Maximum base building height: 150 feet from BFE for the property plus freeboard.
e.
Maximum bonus building height: Bonus height may be approved according to Section 8.12.
f.
Minimum pervious area at ground level: Thirty percent (30%) of the total Lot Area and thirty percent (30%) of the front yard area. The minimum required pervious area shall be retained/provided at grade level. (For additional related standards, see subsection 5.b. below).
g.
Green space: A minimum of twenty percent (20%) of the total Lot Area shall be maintained as unobstructed Green Space and shall be landscaped. On lots up to 22,400 square feet in size, at least twenty-five percent (25%) of the Front Yard area shall be maintained as green space. On lots greater than 22,400 square feet in size, at least thirty percent (30%) of the front yard area shall be maintained as green space. The Commission may waive or reduce the minimum required green space in the front yard of a project through the Site Plan approval process, if it finds that the character of the Building or the configuration of the plan makes such a reduction reasonable or necessary, and provided that the square footage of the approved reduction in green space is provided elsewhere on the site.
h.
Minimum floor area:
5.
Additional required features and requirements. All properties developed under the RM-70 Zoning requirements shall provide the following:
a.
Public access boardwalk as required by the Miami-Dade County Shoreline Review Committee and by North Bay Village per Section 8.17.O. (Developer shall dedicate an easement to the Village conveying the boardwalk and a public access corridor).
b.
All exterior paving surfaces, except for covered parking garages, shall be constructed of permeable material. Up to twenty-five percent (25%) of the combined square footage of all parking areas, driveways, walkways, patios, and terraces built with permeable materials may be subtracted from the maximum calculated impervious coverage on the lot, if approved by the Director of Public Works (or designee), based on the porosity of the material used, and the amount (percent) of annual rainfall that will pass through the material.
c.
Artwork and art installations shall be provided in the front and within the Island Walk portion of each development preference should be given to local artists and interactive experiences that highlight Florida's cultural, ecological, and historic assets. Artwork should be placed in a manner that does not encumber access to or views of the waterfront. The proposed location and character of all artworks shall be considered during the Site Plan approval.
d.
Developments shall comply with existing landscaping requirements, as well as changes implemented in the future to conform to contiguous developments and landscaping plans implemented for the causeway and interior island areas.
e.
Developments shall provide furnishings, lighting, and pedestrian amenities along the Island Walk per Section 8.17.O., Island Walk Standards.
f.
All parking garages shall be constructed with architectural features that hide them from public view (glass, screening, greenery etc.) pursuant to subsections 9.3.E. and I.
g.
Lighting shall be provided in all areas in the front of development where trees are planted.
h.
Properties developed pursuant to a transfer of development rights pursuant to Section 8.13 shall be required to achieve at least thirty (30) green building and design points pursuant to the standards of Section 8.21.
i.
Landscaped Green Space shall be used to delineate existing and proposed Structures, parking areas, driveways, and other vehicular use areas, sidewalks, and walkways, utilities, and/or Easements on the property.
j.
Building forms shall be varied to avoid monotony but shall be sensitive to the profiles of adjacent Buildings and shall configure second and third stories adequately to reduce the apparent overall scale of the building.
k.
A minimum of thirty percent (30%) of the ground level front facade shall contain openings/transparency (either windows, doors, or transitional spaces defined by porches, porticoes, or colonnades).
l.
The massing of the buildings resulting from volumetric distribution according to the dimensional requirements shall provide light-plane access in between buildings, even if maximum build-out of adjacent properties occurs.
m.
Main entries shall be prominent and oriented to the Streets and rendered in appropriate scale relative to adjacent buildings as well as the individual building.
E.
CG General Commercial District.
1.
Purpose and intent. The purpose of this district is to encourage the development of general office, retail, service commercial, tourist accommodations, and commercial-residential mixed use.
2.
Uses permitted:
a.
Bank or financial institution.
b.
Clinic, urgent care, or hospital.
c.
Dry cleaning substation or laundromat.
d.
Lounge or nightclub (subject to the provisions of Chapter 111 of the Village Code of Ordinances).
e.
Medical or dental office/laboratory.
f.
Personal services establishments, including, but not limited to, shoe repair, barber and beauty shop, stock brokerage, employment agency, travel bureau, and messenger service.
g.
Post office.
h.
Professional offices, including but not limited to architecture, accounting, engineering, investigative, investment and tax counseling law, medicine, and real estate.
i.
Multi-family residential dwellings, in conjunction with ground floor commercial.
j.
Tourist accommodations including hotels, motels, vacation rentals, and time-sharing units.
k.
Restaurants, Coffee Shops, delicatessens, and fast order food establishments (excluding any form of drive-in or drive-thru service regardless of the type of establishment; see subsection E.3.a).
l.
Outdoor seating/dining shall be subject to the following requirements and conditions:
(1)
An application must be filed with the Village Manager, or designee, for administrative review and approval, which shall include layout of all tables, chairs, benches, and other furniture; pedestrian ingress and egress; location of refuse containers; and other elements necessary to illustrate the proposed outdoor seating/dining use and area (all drawings must be titled, indicate orientation, and be at an acceptable scale).
(2)
Outdoor seating/dining areas and uses of the public Right-of-Way and/or any private property may be approved, denied, or approved with conditions, modifications, safeguards, or stipulations appropriately and reasonably related to the intent, purposes, standards, and requirements of the related regulations by the Village Manager. Such permit shall not be transferable in any manner and is strictly a warrant permit, issued for a period of one year, renewable annually via payment of the annual occupational license fee for such outdoor seating/dining uses.
(3)
The fee for outdoor dining/seating use and area will be charged annually in accordance with the Village's adopted Fee Schedule; the permit fee shall be added to the occupational license fee for the main business.
(4)
The applicant shall provide an indemnity agreement that is acceptable to the Village Manager. This agreement will include specification of liability insurance provided.
(5)
The warrant permitting of outdoor seating/dining use and area may be revoked by the Village Manager or designee, upon finding that one or more conditions of these regulations have been violated, or that the outdoor seating/dining area and use are being operated in a manner that constitutes a public nuisance, or in any way that constitutes a reasonable risk of potential liability to the Village.
(6)
Outdoor seating/dining use and area may be temporarily suspended by the Village for public use/purpose, utility, sidewalk or road repairs, emergency situations, or violations of provisions contained herein. The length of suspension shall be determined by the Village Manager, as necessary. Removal of all street furniture and related obstructions shall be the responsibility of the owner/operator of the outdoor seating/dining.
(7)
Outdoor seating/dining area shall be kept in a neat and orderly appearance and shall be kept free from refuse and debris. The applicant shall be responsible for daily cleaning and sweeping of the outdoor seating/dining area and for the cleanliness and maintenance of any outdoor planters immediately adjacent to the outdoor seating/dining area. Use of Village sidewalks for trash and garbage removal shall be prohibited.
(8)
Outdoor seating/dining use and area shall not interfere with the free and unobstructed pedestrian or vehicular circulation of traffic, public access to any Street intersections, crosswalks, public seating areas and conveniences, bus stops, Alleys, service Easements, handicap facilities, or access to any other commercial establishments. The width and location of the sidewalk pedestrian passage shall be as follows:
If there is seating on one side of the sidewalk, a minimum of five feet of sidewalk must remain clear and unobstructed for pedestrian passage.
(9)
Outdoor seating/dining area on the public rights-of-way shall be open and unenclosed. No building structures of any kind shall be allowed in and over any portion of the outdoor seating/dining area located on public property.
(10)
Tables, chairs, and all other furniture used in the operation of an outdoor seating/dining area shall not be anchored or restrained in any manner. Individual table umbrellas, planters, or other such non-stationary elements may be permitted within the outdoor seating/dining area and where applicable, shall have a minimum clearance height of seven feet above grade.
(11)
Outdoor seating/dining use and area shall be restricted to the length of the sidewalk or public Right-of-Way immediately fronting the cafe or other establishment
(12)
Outdoor seating/dining area shall be at the same elevation as the adjoining sidewalk or public right-of-way.
(13)
Carts and trays for serving food are permitted in the outdoor seating/dining area.
(14)
Outdoor seating/dining use and area shall not be provided with amplified sound of any kind.
(15)
Outdoor Seating/Dining Areas may serve Alcoholic Beverages where such service is strictly incidental to the service of food and from a service Bar only; provided no entertainment of any kind is furnished. No Sign of any type or character shall be exhibited or displayed to the outside denoting that alcoholic beverages are obtainable within.
(16)
Any administrative decision may be appealed to the Village Commission in accordance with the requirements of this Code.
(17)
The hours of operation shall coincide with that of the primary Restaurant.
m.
Retail sales establishments, including, but not limited to, the sale of appliances, books, stationery, drugs, hardware, liquor, groceries, meats, produce and fish; however, such retail sales shall be restricted to merchandise stored and displayed within the Main Structure.
n.
Radio and television transmitting station and studio.
o.
Studios for artists, photographers, sculptors, or musicians, including: the teaching of art, music, dancing, or artistic instruction.
p.
Daycare or nursery.
q.
Repair service establishments (shoes, watches, appliances, and other similar uses).
r.
Gym or fitness center.
s.
Commercial parking lot.
t.
Business, vocational, and trade schools.
u.
Pharmacy.
v.
Animal hospital, grooming, and/or kennel.
w.
Funeral home or mortuary.
x.
Art gallery.
y.
Religious institution.
z.
Lodges, social organizations, and union halls.
aa.
For accessory uses and structures, please refer to Section 8.16.A.
3.
Special uses permitted. Uses permitted upon approval of the Village Commission in accordance with the provisions pertaining to use exceptions (See Section 8.11).
a.
Drive-Thru or Drive-In service.
b.
Marinas, provided that the following provisions are adhered to:
(1)
No docks or piers, including mooring piles, catwalks, and other appurtenances, shall be constructed closer than 7.5 feet to any adjacent property line.
(2)
In no case shall a dock or pier project more than ten percent into the width of any waterway.
(3)
Fire prevention and fire control equipment shall be provided as required by the South Florida Building Code.
(4)
In conjunction with the dockage of moorage of vessels, the following water-related activities, vessels, and structures are prohibited:
(a)
Commercial vessels.
(b)
Haul-out facilities for major boat repair or overhaul work.
(c)
Unscreened storage of boating supplies or accessories in the required Front Yard Setback area.
(d)
Permanent live-aboard vessels except as required for work or security purposes.
c.
Printing and publishing establishments, including blueprinting and photostating, provided that no such use shall occupy more than 1,500 square feet of Gross Floor Area.
d.
Service stations, provided that the following provisions are adhered to:
(1)
All Structures shall be designed in a manner that is compatible with the overall environmental and architectural design goals of the community.
(2)
All properties shall have at least 150 feet of frontage.
(3)
All new and used merchandise shall be stored and displayed within the main structure except tires, accessories, and lubrication items, which may be maintained in movable or enclosed cabinets.
(4)
No used or discarded automotive parts or equipment or permanently disabled or wrecked vehicles shall be located outside the Main Structure except within an enclosed trash storage area.
(5)
Major repairs or engine overhauling or transmission repair, painting, body and fender repair, and tire recapping is not permitted.
(6)
The rental of heavy equipment and the sale or rental of merchandise not related to the motoring public, other than as specified herein, is excluded.
(7)
The storage of up to ten (10) rental trailers or automobiles is permitted, provided that the trailers or automobiles are backed up against a six-foot high wall and located not less than twenty (20) feet from any sidewalk, street, or driveway.
(8)
Car washes are permitted as an Ancillary Use subject to being located 200 feet from residential uses and subject to hours of operation.
(9)
Trash shall be stored in areas shielded from public view. Storage trash containers shall be enclosed and covered.
(10)
Any lights provided to illuminate or advertise the service station, shall be installed and maintained in a manner so as not to create an undue glare on adjacent properties.
(11)
Structures shall not occupy more than thirty percent (30%) of the Total Lot Area.
(12)
Driveways shall be permitted at the intersections of primary and secondary arterials, provided the construction of driveway entrances is within the curb return, but shall be at least five feet beyond the end of the curb return. At all intersections, whenever possible, combine driveways servicing both service station and adjacent uses, shall be designated and provided.
(13)
Planter areas and tree wells shall be constructed and equipped with irrigation, lighting, and drainage facilities, and landscaped prior to final building inspection.
(14)
Whenever the Use abuts a Residential District, a wall shall be erected along the property line eight feet in height.
(15)
Service stations shall not be permitted within 300 feet of the property line of any House of Worship, hospital, and school.
(16)
No more than four service stations shall be permitted within the Village at any one time.
e.
Theaters for the showing of motion pictures shall provide no less than 400 fixed seats. When the theater is to be used solely for activities of a performing art, or an event of a cultural or civic nature, a lesser number of seats may be required by the Commission.
f.
Yacht clubs, provided they have a minimum of 150 feet of water frontage and no main building is less than 4,000 square feet in gross floor area.
g.
Public Storage, in conjunction with another use which is listed as a permitted use in the General Commercial zoning district. The public storage use may occupy no more than thirty-five percent (35%) of the floor area of the development. Additionally, no special use approval for a public storage use shall be granted within 2,500 feet from an existing public storage facility. This distance shall be measured as the airline distance between the nearest property lines of the proposed public storage location and the existing public storage location.
4.
Prohibited uses. Boat storage facilities utilized for the purpose of storing boats shall be prohibited in the CG (General Commercial) District.
5.
Site development standards.
a.
Minimum lot size:
(1)
Area—10,000 square feet.
(2)
Frontage—75 feet.
b.
Minimum yard setbacks:
c.
Maximum base building height: 150 feet.
d.
Maximum bonus building height: Bonus height may be approved according to Section 8.12.
e.
Maximum FAR: The maximum floor area ratio for all non-residential uses is 3.0. Areas used for parking shall not be counted towards maximum FAR. Hotels and motels are considered commercial uses.
f.
Maximum base density for residential units: Seventy (70) efficiency or one (1) bedroom dwelling units per acre of net lot area. The following required minimum amount of lot area per unit shall determine the number of other dwelling unit types permitted:
g.
Maximum bonus density: Bonus density may be approved according to the Transfer of Density Rights program in Section 8.13.
h.
Minimum pervious area: Twenty percent (20%) of the total parcel. The lot area at grade level shall be retained as pervious area and shall be landscaped.
i.
Landscaping: Shall be provided according to Miami-Dade Landscaping Chapter 18A.
j.
Minimum floor area required by unit type:
F.
Urban Core Zone (T6).
1.
Purpose and Intent. The Urban Core Zone consists of the highest density and greatest variety of Uses, including civic buildings. A network of small blocks has walkable thoroughfares with wide sidewalks, with steady tree planting and buildings set close to the Frontage with frequent doors and windows. See Chapter 15 for use and development standards within the Urban Core Zone.
G.
Public Buildings and Grounds.
[Reserved]
(Ord. No. 2019-001A, § 2(Exh. A), 2-28-19; Ord. No. 2020-001, § 2, 1-14-20; Ord. No. 2021-012, § 3, 6-30-21; Ord. No. 2022-005, § 2, 3-8-22; Ord. No. 2023-011, § 3(Exh. B), 9-28-23; Ord. No. 2022-012, § 2, 11-2-22; Ord. No. 2024-004, § 2(Exh. A), 3-12-24; Ord. No. 2024-005, § 1(Exh. A), 5-14-24)
Editor's note— Ord. No 2019-001A was adopted Feb. 28, 2019, but was not executed by the Mayor, Clerk, and Village Attorney until Feb. 28, 2023.
It is recognized that a shortage of workforce housing exists in North Bay Village which is detrimental to the public health, safety, and welfare. The current housing stock in the Village is not affordable to many workers who would choose North Bay Village as a place to live and thus they are forced to live in other areas of Miami-Dade County and commute greater distances. The purpose of this regulation is to expand the level of housing choices available to households, by (i) requiring a minimum number of workforce housing units in new and redevelopment projects of 75 units or more located in the T6 and RM-70 zoning districts, and (ii) providing for an additional Workforce Housing Density Bonus (WHDB) to property owners with land located in the T6-24, T6-24MU and T6-30 transects, unless otherwise stipulated in an approved development agreement in connection with a Special Area Plan approval. The program is intended to serve the housing needs of people employed in the jobs that the general population of the community relies upon to make our community livable such as educators, first responders and service workers.
A.
Minimum Workforce Housing Unit Requirement. A mandatory five percent (5%) of dwelling units in residential developments of seventy-five (75) units or more, up to the maximum density permitted without bonuses shall be developed as workforce housing Dwelling Units for households with incomes between 60% and 140% of Miami-Dade County AMI.
B.
Workforce Housing Density Bonus Program. Density bonuses may be approved by the Village Commission for participation in the Village public benefit program, in compliance with this section. The purpose of this regulation is to provide a Workforce Housing density bonus to property owners with land located in the T6-24, T6-24MU and T6-30 transect zones along Kennedy Causeway, for the planning and construction of workforce housing units for households with incomes between 80% and 100% of Miami-Dade County AMI.
1.
During the site plan and approval process, the Village Commission may approve density up to 120 dwelling units per acre if the applicant for development approval sets aside a minimum additional five percent (5%) of the total units for non-subsidized workforce and pays the community contribution Fee for each additional dwelling unit approved above the base density of 70 dwelling units per acre up to a maximum density of 120 units per acre, as stipulated in subsection D. below. The workforce housing units to be provided pursuant to this subsection are in addition to, and in excess of, the minimum workforce housing requirement set forth in subsection 8.10.1.A.
2.
Additional density above 120 dwelling units per acre, up to a maximum of 150 units per acre may be approved by the Village Commission during the site plan review and approval process, with the provision of additional workforce housing, if the applicant for development approval sets aside a minimum additional five percent (5%) of the total units for non-subsidized workforce housing and pays the community contribution fee per additional dwelling unit approved above 120 units per acre up to a maximum of 150 units per acre, as stipulated in subsection F.4 below. The workforce housing units to be provided pursuant to this subsection are in addition to, and in excess of, the minimum workforce housing requirement set forth in subsection 8.10.1.A. and 8.10.1.B.1. Total density including bonuses shall not exceed 150 dwelling units per acre.
3.
The following table summarizes the relationship between density and workforce housing units as a percentage of total units in a site plan:
C.
Applicability. The workforce housing requirements described above shall be satisfied through on-site provision of qualifying units for multifamily residential developments located on parcels zoned T6-24, T6-30, T6-24MU or RM-70 that are offered for rent; as well as to any multifamily residential project approved for sale but which converts to for-rent units within five (5) years of issuance of a Certificate of Occupancy (CO). All CO's issued for a for-sale multifamily development shall include a condition referencing this requirement. For-sale condominium developments may provide for development of workforce housing units on-site or may instead satisfy workforce housing obligations through a payment in-lieu of workforce housing, as set forth in Section 8.10.2, at the applicant's option.
D.
Validity Period. Development approvals shall be valid for two (2) years in accordance with these regulations following final approval by the Village Commission unless otherwise approved by development order. Approved site plans may be granted no more than two (2) one-year renewals, subject to approval by the Village Commission. To avoid expiration of the site plans, the applicant must apply for and obtain a full building permit for substantial construction prior to the expiration of the timeframes set forth above. Community contribution fees paid prior to expiration of a site plan approval are nonrefundable, or transferable to a new site plan approval. A development seeking re-approval for a site plan that has lapsed, or a new site plan approval on a property where a site plan has lapsed, shall be assessed another community contribution Fee for bonus density in accordance with this section.
E.
Community Contribution Fee.
1.
Community contribution feed for bonus units over and above the base density shall be assessed by and be payable to the Village in accordance with its adopted Fee Schedule.
2.
The fee per unit of bonus density per acre shall be reviewed and adjusted as necessary by the Village Commission during the annual budget process.
F.
Workforce Housing Program Administration.
1.
Purpose. The purpose of this section is to create administrative procedures for the implementation of the Workforce Housing Program established pursuant to Chapter 15, Section 15.2.H., Chapter 8, Section 8.10.1. of the North Bay Village Unified Land Development Code, and applicable to mixed-use developments in the T6-24, T6-24MU (Municipal Use) and T6-30 transect zones along Kennedy Causeway (79th Street Causeway).
2.
Definition of Terms. The following definitions shall apply to this chapter. Additional relevant definitions are contained in Chapter 3 of the North Bay Village Unified Land Development Code:
a.
Condominium. A form of ownership of real property created pursuant to Chapter 718 of the Florida Statutes, which is comprised entirely of units that are owned by one or more persons, and which there is, appurtenant to each unit, an undivided share in common elements.
b.
Condominium Conversion. As established by Sections 718.604—718.622, Florida Statutes.
c.
Control Period. Each 30-year period during which the affordability restrictions imposed by this article shall apply. The control period begins at the time of any sale or resale of the affected unit by every new Workforce Housing Unit owner.
d.
Covered Development. All developments providing Workforce Housing units pursuant to Chapter 8, Section 8.10.1. of the North Bay Village Unified Land Development Code.
e.
Department. Unless otherwise indicated, refers to the Department or Division designated by the Village Manager to administer this program or any successor agency.
f.
Developer. Any person, form, corporation, partnership, limited liability company, association, joint venture, or any entity or combination of entities that apply for development orders or permits for residential Dwelling Units seeking to utilize the density bonus available pursuant to Chapter 8, Sections 8.12.5, 8.13, 8.15, and Chapter 15, Section 15.1.H. of the North Bay Village Unified Land Development Code, but does not include the state or any county, municipality, or any governmental entity.
g.
Eligible Household. A household whose total income is between 60% and 140% of Miami-Dade County Median Household Income (MHI).
h.
Eligible Household Income. Any income derived from any proposed occupants of a Workforce Housing unit who are 18 years of age or older and who will use the unit as their primary residence.
i.
Household. Any natural person who occupies a Workforce Housing unit as their primary residence.
j.
Market Rate Dwelling Units. All dwelling units in a covered development that are not Workforce Housing units as defined herein.
k.
Median Household Income (MHI). The median income level for Miami-Dade County households as determined in the U.S. Census Bureau decennial census and/or U.S. Census Bureau American Community Survey (ACS) 5-Year Estimates, which are updated every year.
l.
Program Administrator. Unless otherwise indicated, refers to the individual or individuals designated by the Village Manager to administer the Workforce Housing Program.
m.
Qualified Household. An eligible household with annual incomes within the affordable ranges established in this Code.
n.
Qualified Improvement. Any addition or replacement to the Workforce Housing Unit that adds materially to the value of the unit, prolongs the unit's useful life, or adapts the Workforce Housing unit to new uses and the replacement of any existing amenities.
o.
Workforce Housing Density Bonus Agreement. A written agreement between an applicant for a development and the Village containing specific requirements to ensure the continuing affordability of the workforce housing units included in a development during the control period.
p.
Workforce Housing Unit. A rental dwelling unit occupied by an eligible workforce household where the maximum monthly rental cost shall be restricted to an amount affordable to a workforce household with a total annual income between 60% and 140% of Miami-Dade County MHI.
q.
Workforce Housing Unit Rent. Rents that do not exceed the maximum monthly Rent Limits as determined for Miami-Dade County by the U.S. Department of Housing and Urban Development in its annual Income Limits and Rent Limits as used by Florida Housing Corporation for its multifamily rental programs.
3.
Compliance Procedures. Workforce Housing Declaration of Restrictive Covenants and Workforce Housing Agreement.
a.
Every Workforce Housing unit established pursuant to Chapter 15, Section 15.2.1. of the North Bay Village Unified Land Development Code shall be offered for rent to a qualified household to be used for their own primary residence.
b.
Prior to the initial rental of any workforce unit, the owner must record the Workforce Housing Density Bonus Agreement in the chain of title for that unit, at no cost to the Village, and submit recordation documentation to the Village. The rental contract for the unit must also contain a clause summarizing the workforce housing requirements and rent level control and referencing the recorded Workforce Housing Density Bonus Agreement.
c.
The maximum rental rates for workforce units shall not exceed the affordability limit of an eligible workforce household making an annual income within the applicable median household income range pursuant to this section as published annually by North Bay Village.
4.
Application of Workforce Housing Density Bonus. Any development proposing to utilize the density bonus allowed pursuant to Section 8.10.1 must submit a Workforce Housing Density Bonus zoning application with their application for site plan review to the Village for consideration and approval by the Village Commission. At a minimum, the density bonus application shall include:
a.
General description of the development including location, size, land use, zoning, and the number of rental units and/or for sale units the development will contain;
b.
Conceptual development plan showing the proposed location of the Workforce Housing rental units;
c.
Total number of market rate and Workforce Housing units;
d.
Estimated initial monthly rent for each Workforce Housing Unit;
e.
Provide the size in terms of square feet and number of bedrooms for each Workforce Housing unit;
f.
Location in development of each Workforce Housing unit and its applicable AMI affordability range;
g.
If construction is to be phased, a phasing plan identifying the number of Workforce Housing units and market-rate units in each phase;
h.
Documentation and plans regarding the interior and exterior appearances, materials, and finishes of the bonus units if not exactly the same as the market-rate units; and
i.
Any other relevant information requested by the Village.
5.
Workforce Housing Density Bonus Criteria.
a.
Workforce Housing units shall be built on the same site as the proposed development.
b.
Workforce Housing units must be reasonably dispersed throughout the project, and not clustered together or segregated in any way, from the market-rate units.
c.
On average, Workforce Housing units must contain the same number of bedrooms and quality of construction as the other market-rate units in the development.
d.
Workforce Housing units shall be developed simultaneously with, or prior to the development of the other market-rate units.
e.
If the development is phased, the phasing plan shall provide for the construction of Workforce Housing units proportionately and concurrently with the market-rate units.
f.
The interior building materials and finishes of the Workforce Housing units shall be substantially the same type and quality as market-rate.
g.
Workforce Housing units aimed at workers considered essential (such as educators, first responders (e.g., police and firefighters), and service workers) shall be prioritized.
6.
Workforce Housing Density Bonus Agreement.
a.
Prior to the approval of any development order or permit for any development in which the Workforce Housing density bonus is requested, the applicant shall enter into a Workforce Housing Density Bonus Agreement with the Village, which shall set forth the commitments and obligations of the applicant to ensure compliance with these regulations.
b.
The applicant shall execute all documents deemed necessary by the Village in a form to be established by the Village Attorney, including without limitation, restrictive covenants, deed restrictions and related instruments including requirements for income qualification for tenant of rental units.
7.
Maintenance of Rent Affordability.
a.
On an annual basis, the Village Manager, or designee, shall make available copies of updated AMI ranges, and associated rental limits applicable to Workforce Housing units in North Bay Village based on official information available from Miami-Dade County or U.S. Department of Housing and Urban Development.
b.
The time period during which the rental rate for a Workforce Housing unit under these regulations is required to be controlled within a specified affordability range is 30 years.
c.
Workforce housing rental unit owners are required to submit an annual report to the Village on or before January 30 of each year, verifying that all designated Workforce Housing units the won are being rented at rates affordable to area households with annual incomes within the affordability ranges established in this Code. Documentation may be in the form of a notarized affidavit stating the current annual rent for each unit together with collaborating documentation, or other form acceptable to the Village Manager.
8.
Violations.
a.
It is a violation of this ordinance to:
(1)
Fall to file required affidavits or audits when required.
(2)
Rent or lease a Workforce Housing unit to a person or family that is not income eligible as required by this Code.
(3)
Knowingly give false or misleading information relating to this program to any Village employee.
(4)
Participate, in any way, in the lease or rental of a Workforce Housing unit which violates any provision of this Code or a Workforce Housing Density Bonus Agreement.
b.
The fine for each violation of these provisions shall be in conformance with the procedures and fines in Chapter 153 of the North Bay Village Code of Ordinances, as amended.
c.
Appeals to any violations issued by North Bay Village under these regulations shall be processed pursuant to the North Bay Village Code Compliance appeals procedure in Chapter 153, North Bay Village Code of Ordinances, as amended.
(Ord. No. 2022-013, § 2(Exh. A), 11-2-22; Ord. No. 2023-012, § 2(Exh. A), 9-29-23; Ord. No. 2024-004, § 2(Exh. A), 3-12-24)
The provision of workforce housing units within a for-sale development may be satisfied by a developer paying an "in-lieu" fee to the Village to be deposited in the Village's Resilient Housing Trust fund. The "in-lieu" fee calculation shall be calculated at the time of site plan approval and the developer shall determine whether to satisfy their workforce housing requirement pursuant to this section or provide them on-site prior to site plan approval and inform the Village accordingly. The Developer shall be responsible for providing the Village with the necessary data and calculations for their review. This program is intended to allow the Village flexibility in the provision and maintenance of workforce housing.
A.
Definitions. This subsection provides definitions for terms used in this section that are technical in nature. If there is a conflict between this section and other definitions provided in the Code, this subsection shall take precedence.
1.
Affordable Purchase Price shall be the most recent estimated purchase price for a family of four at 100 percent of median family income issued by Miami-Dade County.
2.
Village-wide median sales shall be established by the Developer, subject to review and approval by the Village Manager or their designee, at the time the project receives site plan approval. The figure shall be established by averaging the sales price of apartments sold in the Village over the past two-years. The sales data shall be based on the Miami-Dade County Property Appraiser's public records and sales under $5,000 shall not be taken into account.
B.
Fee Calculation. The "in-lieu" fee shall be calculated at the time of site plan approval as follows:
Village-wide median sales price
(minus)
Affordable Purchase Price
(equals)
Payment in-lieu per unit.
C.
Fee Collection. Should the developer elect to satisfy the provision of workforce housing pursuant to this section they shall have the option to select between the following payment options:
1.
10% of the "in-lieu" fee within 30 days of site plan approval, with the remaining 90% due to the Village prior to the issuance of the project's master building permit; or
2.
35% of the "in-lieu" fee within one year of site plan approval, with the remaining 65% due to the Village prior to the issuance of the project's master building permit.
Developer shall inform the Village of which payment option they have selected at the time of site plan approval. All payments to the Village are non-refundable and any density obtained on their basis is conditioned upon the applicant or property owner maintaining the site plan approval as valid. If the site plan approval expires, both the density and any payments made thereon shall be forfeited to the Village.
D.
Resilient Housing Trust Fund. The Village shall establish a Resilient Housing Trust fund for the purpose of collecting all funds related to Village's workforce housing programs pursuant to this article.
1.
The funds collected for deposit in the Resilient Housing Trust fund may be utilized for the following workforce housing programs:
a.
Rental Assistance Program. The Village shall be permitted to establish a rental assistance program in which the funds collected pursuant to this section may be used to fund grants to assist qualified households with rental payments to help maintain affordability in the Village. To qualify for a grant, a household must submit an application, in a form to be provided by the Village Manager and Village Attorney, establishing their status as a qualified household. Then the Village Manager or their designee shall hold a lottery to determine who should receive the available grants. Priority shall be given as provided in section 8.10.2(5).
b.
Homeowner Assistance Program. The Village shall be permitted to establish a homeowner assistance program in which the funds collected pursuant to this section may be used to fund grants to assist qualified households with homeowners' or condominium association maintenance fees and special assessments to maintain affordability in the Village. To qualify for a grant, a household must submit an application, in a form to be provided by the Village Manager and Village Attorney, establishing their status as a qualified household. Then the Village Manager or their designee shall hold a lottery to determine who should receive the available grants. Priority shall be given as provided in section 8.10.2(5).
c.
Down Payment Assistance. The Village shall be permitted to establish a down payment assistance grant program in which the funds collected pursuant to this section may be used to fund grants to assist qualified households with down payments to purchase property within the Village. To qualify for a grant, a household must submit an application, in a form to be provided by the Village Manager and Village Attorney, establishing their status as a qualified household. Then the Village Manager or their designee shall hold a lottery to determine who should receive the available grants. Priority shall be given as provided in section 8.10.2(5).
d.
Rehabilitation Assistance Grant Program. The Village shall be permitted to establish a rehabilitation assistance grant program in which the funds collected pursuant to this section may be used to fund grants to assist qualified households with the rehabilitation of owner-occupied units. To qualify fora grant, a household must submit an application, in a form to be provided by the Village Manager and Village Attorney, establishing their status as a qualified household. Then the Village Manager or their designee shall hold a lottery to determine who should receive the available grants. Priority shall be given as provided in section 8.10.2(5).
e.
Administration; Consulting Services. The Village may use a portion of the trust fund monies to administer the fund or retain consulting services, through resolution of the Village Commission, to administer the provisions of this section and/or provide the Village with strategic advice regarding the provision of workforce housing within its jurisdiction.
2.
The Village Commission may from time to time authorize additional programs which may be funded through the Resilient Housing Trust fund by resolution.
3.
The Village Manager, or their designee, shall provide the required supervision for the Resilient Housing Trust account and shall oversee the account, with all expenditures made pursuant to the Village Charter and Code. A financial status report on the Resilient Housing Trust account shall be provided to the Village Commission on or before October 1 of each calendar year.
E.
Essential Worker Prioritization.
1.
The programs created pursuant to sub-section 4 shall give priority to the following types of essential workers, provided that any essential worker household applying for assistance under such programs shall qualify pursuant to the income guidelines established in Section 8.10.1 of the ULDC:
a.
North Bay Village Police, Fire Department employee or general employees of North Bay Village.
b.
Miami-Dade County Public School employees working at a school in North Bay Village.
c.
Licensed health professionals working in North Bay Village.
d.
Residents employed by North Bay Village.
2.
The priority list may be modified or supplemented from time to time by Village Commission resolution; however, nothing shall preclude other eligible households from applying for the workforce housing programs and being considered for the Village's workforce housing programs.
; Ord. No. 2022-012, § 2, 11-2-22 [put in order in HN]
(Ord. No. 2023-012, § 2(Exh. A), 9-29-23; Ord. No. 2024-004, § 2(Exh. A), 3-12-24)
A.
Purpose and intent. In order to provide for adjustment in the relative locations of uses and buildings of the same or of different classifications; to promote the usefulness of these regulations as instruments for fact-finding, interpretation, application, and adjustment; and to supply the necessary flexibility to their efficient operation, use exceptions are permitted by these regulations.
B.
Use exceptions permitted. The Village Commission may permit the following buildings and uses as use exceptions, provided there are clear indications that such exceptions will not substantially affect adversely the uses permitted in these regulations of adjacent property.
1.
Structural alterations to special uses, after these uses are approved by the Village Commission.
2.
Other special uses as may be enumerated in specific Zoning Districts.
3.
Assisted Living Facility or Nursing Facility.
4.
Temporary sales center/marketing office for a period of up to twelve (12) months, renewable administratively by the Village Manager for up to two (2) additional twelve-month periods for a maximum of thirty-six (36) months.
5.
Farmers' market.
6.
Uses that provide a public benefit (parks, Open Space, and other public amenities) that will not adversely affect the existing adjacent uses, the uses permitted in the zoning district of the subject property, or the uses permitted in the zoning district of the adjacent properties.
7.
Parking garages as stand-alone, principal structures in multifamily residential zoning districts, provided their purpose is to serve adjacent multifamily residential development and subject to the design standards established in Section 9.3.E.
8.
Temporary construction trailers and/or units used for the storage of construction materials, following issuance of a development order for a project, subject to the following limitations:
a.
The placement, size, and access to all trailers, parking, landscaping, buffering, and lighting, shall comply with all applicable zoning and building requirements.
b.
Construction trailers shall require a building permit. If utilities are needed, electric and/or plumbing permits shall be required.
c.
Construction trailer permits shall only be issued in connection with permitted building construction, rehabilitation, or demolition activity.
d.
No sales or leasing shall be conducted from temporary construction trailers.
e.
The placement of construction trailers through a Use Exception shall be permitted for a period of twelve (12) months, renewable administratively by the Village Manager for periods of twelve (12) additional months at a time, until the project is completed.
f.
All approved construction trailers, storage units and/or related outdoor storage, construction fences and similar uses and structures shall be removed from the property prior to the issuance of a certificate of completion or the first Certificate of Occupancy, whichever occurs first.
C.
Expiration of use exception. After the Village Commission has approved a use exception, the use exception shall expire after two years, measured from the date of final Commission action, if no substantial construction or change of use has taken place in accordance with the plans for which the use exception was granted.
D.
Reapplication for use exception. No application for a use exception shall be filed less than one year after the date of disapproval by the Village Commission of an application for a use exception involving the same land or any portion thereof.
(Ord. No. 2019-003, § 2(Exh. A), 3-12-19; Ord. No. 2024-004, § 2(Exh. A), 3-12-24)
Properties in the RM-70 and CG districts may request to purchase additional height from North Bay Village as follows:
A.
Approval of bonus height. Requests for bonus height shall be made concurrent with site plan review and shall be reviewed pursuant to the same criteria as site plans, provided in Section 5.8 ULDC. The Village Planning and Zoning Board shall review the request and provide a recommendation to the Village Commission. The Village Commission shall have the authority to approve or deny any bonus height request at a site plan review public hearing. Bonus heights are not permitted within the T6 transect zones.
B.
Maximum bonus height.
1.
Except for undersized parcels in RM-70, the maximum building height (with bonus) that may be approved according to this Section is 240 feet.
2.
Properties in the RM-70 District that receive development rights pursuant to Section 8.13 may obtain approval from the Village Commission for additional building height of up to thirty percent (30%) above the maximum permitted height (up to 312 feet with the application of all bonuses) to accommodate the transferred density.
C.
Fees.
1.
Bonus height Community Contribution Fees shall be paid to North Bay Village in the following manner: a fifty percent (50%) nonrefundable deposit shall be paid to the Village within 90 days of site plan approval by the Village Commission, and the balance shall be paid concurrently with the issuance of a Building Permit. No building permit shall be issued by the Village until the applicant has paid the fees calculated pursuant to this section.
2.
The Community Contribution Fees shall be assessed and payable to the Village in accordance with the Village's adopted Fee Schedule, as may be amended from time to time.
3.
Community Contribution Fees collected according to the bonus height program shall be utilized for the purchase of future Village parks, land for additional public Open Space, other public amenities, or infrastructure projects.
4.
The bonus fees shall be paid in the following manner:
a.
Applicant will pay to the Village a deposit equal to 10% of the total bonus height or density fee (the "Bonus Fee") within ninety (90) days of the date the site plan approval becomes final and non-appealable. The deposit will be applied to the total Bonus Fee due.
b.
The deposit payment shall be non-refundable.
c.
The deposit will be a credit against the Bonus Fee and such credit will run with the land. Without limiting the foregoing, the deposit will run in favor of all owners and successor owners of the subject property and to all site plan approvals regarding the property, even if one or more site plan approvals expire.
d.
The development agreement to be executed and recorded in connection with the site plan approval for the corresponding project shall contain appropriate language providing that the Bonus Fee deposit running with the land as provided in item 3 above.
(Ord. No. 2019-001A, § 2(Exh. A), 2-28-19; Ord. No. 2019-009, § 2, 7-22-19; Ord. No. 2022-05, § 2, 3-8-22; Ord. No. 2022-012, § 3, 11-2-22; Ord. No. 2023-011, § 3(Exh. B), 9-28-23; Ord. No. 2024-004, § 2(Exh. A), 3-12-24)
Editor's note— Ord. No 2019-001A was adopted Feb. 28, 2019, but was not executed by the Mayor, Clerk, and Village Attorney until Feb. 28, 2023.
For projects within the T6-24, T6-24MU and T6-30 transect zones along Kennedy Causeway, the base density shall be 70 dwelling units per acre. The total density including bonuses shall not be approved for more than 150 dwelling units per acre. See Section 8.10.1.
A.
Community contribution Fees stipulated in Section 8.13.C. below shall be payable to the Village for each additional unit of density above the base density. See Section 8.10.1. for specific requirements.
(Ord. No. 2022-013, § 3(Exh. B), 11-2-22; Ord. No. 2024-004, § 2(Exh. A), 3-12-24)
Editor's note— Ord. No. 2022-013, § 3(Exh. B), adopted Nov. 2, 2022, amended the title of § 8.12.5 to read as herein set out. The former § 8.12.5 title pertained to density bonus program.
Properties in the RM-70 district may request to purchase additional Dwelling Units from North Bay Village, allowing for increased density and height, as follows:
A.
Sending Sites. The sending sites shall be land currently owned by the Village. Any and all Village-owned property shall be considered as an eligible TDR sending or donor site. Total transferred density allocation within the Village shall not exceed the total developable potential of the sending sites. The Planning and Zoning Official shall track and keep an official tally of the development rights available for transfer, which shall be updated with each transaction. Except as set forth in subsection E, density rights transfer requests shall be addressed on a first-come, first-served basis. A copy of each update shall be filed by the Village Clerk. Upon issuance of a building permit for a project on an eligible receiving site that utilizes approved transferred units, the Village shall record a declaration of restriction on its property, recognizing the transfer of units and the remaining number of transferrable units on the sending site.
B.
Receiving Sites. Density Rights from Harbor Island may be and are encouraged to be transferred to receiving sites outside of Harbor Island.
C.
Approval of Transfer of Density Rights and Additional Building Height. Except as set forth in subsection E, requests for transfer of density rights shall be made concurrent with site plan review and shall be reviewed pursuant to the same criteria as site plans, provided in Section 5.8 of the ULDC. The resulting density shall not exceed the limitations set forth in the comprehensive plan and this code and building height following the use of transferred units shall not exceed thirty percent (30%) of the maximum building height (including all other available bonuses) of the receiving site. The Village Planning and Zoning Board shall review the request and provide a recommendation to the Village Commission. The Village Commission shall have the authority to approve or deny any additional density and related additional building height during site plan.
D.
Fees.
1.
Except as set forth in subsection E, the applicant shall pay a Community Contribution Fee per transferred density right (equivalent to one Dwelling Unit) to North Bay Village within 90 days of site plan approval by the Village Commission in accordance with the Village's adopted Fee Schedule, as may be amended from time to time, as follows:
a.
Fifty percent (50%) of the total assessed Community Contribution Fee shall be payable within ninety (90) days of Commission approval of site plan.
b.
Fifty percent (50%) of the Community Contribution Fee shall be payable prior to or upon the issuance of a building permit.
2.
Payments of Community Contribution Fees for transferred density rights shall be nonrefundable.
3.
Should the Site Plan approval expire, the transferred density rights shall revert to North Bay Village, except as provided in subsection E below.
4.
Community Contribution Fees collected according to the TDR program shall be utilized by the Village for the purchase of future Village parks, land for additional public Open Space, other public amenities, or infrastructure projects.
5.
The number of Dwelling Units that the applicant must purchase to achieve the desired density shall be derived from the following calculation:
(number of dwelling units at total density including TDR allocation) minus
(number of dwelling units allowed according to base density) equals
(number of units that must be purchased)
6.
Community Contribution Fees shall be reviewed annually by the Village Commission on the recommendation of the Village Manager during the budget process.
E.
Window for Transfer of Uncommitted TDRs.
1.
Competitive Process. At any time and for any reason, the Village Commission may open a competitive process to accept proposals for conveyance of TDRs the Village owns that have not been approved for transfer in connection with an approved site plan. The competitive process shall be publicly noticed, and any Village property owner shall be entitled to submit a proposal. The process shall set forth the terms of evaluation of proposals, but in no event shall the cost component of proposals be accepted if they are for less than the then-applicable Community Contribution Fee. The Village may award some or all of its available TDRs to one or more proposers, or to one or more properties of any individual proposer, and may award more TDRs to a property than the maximum total density permitted in the comprehensive plan.
2.
Payment. The process shall set forth a date upon which the cost of awarded TDRs shall be paid to the Village, which in no event shall be more than one-hundred-fifty (150) days from the date of award. Once payment of the full amount is made on or before the due date set forth in the competitive process documents, awarded TDRs shall be transferred to the property owned by the awarded proposer, if the awarded proposer does not make timely payment on or before the due date, the award shall be forfeit and the Village may terminate the competitive process or award such TDRs to the next highest ranked proposer.
3.
Records. As a condition of transfer, the Village shall record a declaration of restriction on its property, recognizing the awarded TDRs and the remaining number of TDRs on the sending site, if any. The Planning and Zoning Official shall track and keep an official tally of the awarded TDRs to each property.
4.
Subsequent Conveyance of TDRs. In consideration of the accelerated payment of costs for TDRs through any award under a competitive process, transferred TDRs may be conveyed to any eligible receiving site under this Section 8.13 for use in connection with development, subject to the limitations set forth in the comprehensive plan. As a condition of conveyance, any conveyor of TDRs shall (a) pay the Village $2,500 per conveyed TDR as an administration fee; and (b) record a declaration of restriction on its property acceptable to the Village Attorney, recognizing the conveyed TDRs and the remaining number of TDRs on the conveying site, if any. The Planning and Zoning Official shall track and keep an official tally of TDRs, including the property they are conveyed from and the property they are conveyed to.
5.
Site Plan. Irrespective of an award or purchase of TDRs under this subsection, any development in the Village shall be subject to site plan review and approval by the Village Commission, and any other necessary approvals as required by this ULDC, and no award or purchase of TDRs recognized in this subsection shall be construed as entitling an applicant to site plan approval for a specific number of units, height, or floor area. Owners of TDRs which acquire TDRs through this subsection shall be limited to the maximum density permitted under the comprehensive plan and this code for a given property at time of site plan approval irrespective of how many TDRs they may own or have assigned to the property in the record maintained by the Planning and Zoning Official.
(Ord. No. 2019-001A, § 2(Exh. A), 2-28-19; Ord. No. 2019-009, § 2, 7-22-19; 2022-05, § 2, 3-8-22; Ord. No. 2022-012, § 4, 11-2-22; Ord. No. 2023-011, § 3(Exh. B), 9-28-23; Ord. No. 2024-004, § 2(Exh. A), 3-12-24; Ord. No. 2024-006, § 2(Exh. A), 6-11-24)
Editor's note— Ord. No 2019-001A was adopted Feb. 28, 2019, but was not executed by the Mayor, Clerk, and Village Attorney until Feb. 28, 2023.
All properties in the T6 and RM-70 districts contiguous to Biscayne Bay and its natural tributaries shall provide and maintain a shoreline walkway adjacent to and parallel to the riparian Right-of-Way, designed and constructed in a manner consistent with the Island Walk Standards referenced in Section 8.17.O., as may be amended from time to time. The Island Walk shall be provided continuously along the water for the full width of the property. In addition, all properties in the RM-70 district contiguous to Biscayne Bay are subject to the following:
A.
Prior to, or concurrent with, site plan approval, the Village Commission shall have the authority to allow the Island Walk to be provided in the riparian right-of-way in lieu of providing the shoreline walkway upland on the subject property, conditional on approval by DERM.
B.
Except as otherwise provided in these regulations, a public access connection walkway of a width consistent with the Island Walk Standards shall be provided and maintained between the shoreline walkway and the public Right-of-Way.
C.
All developments contiguous to Biscayne Bay and its natural tributaries shall be subject to review and approval by the Miami-Dade County Shoreline Review Committee.
D.
Easements for both the Island Walk and public access connection walkway shall be dedicated and recorded prior to issuance of a Building Permit. The easement for the Island Walk shall provide connection to the Island Walk of contiguous properties.
E.
The Island Walk and public access walkway shall be open to the public daily, during hours determined by the Village. Neither the Island Walk facilities or public connection walkway shall be fenced in or closed off in any way that prevents or precludes access to or connectivity to adjacent (existing or future) segments of the Island Walk.
F.
All design features including hardscape and softscape treatments, furnishings, lighting, signage, artwork, etc. shall be consistent with the Island Walk Standards.
G.
All shoreline accessibility facilities constructed according to this section shall be ADA compliant.
(Ord. No. 2019-001A, § 2(Exh. A), 2-28-19; Ord. No. 2023-011, § 3(Exh. B), 9-28-23; Ord. No. 2024-004, § 2(Exh. A), 3-12-24)
Editor's note— Ord. No. 2019-001A, § 2(Exh. A), adopted Feb. 28, 2019, enacted a new § 8.14 and renumbered the former § 8.14, supplemental use regulations, and § 8.15, supplemental development standards as set out herein. In that Ord. No. 2019-001A was not executed by the Mayor, Clerk and Village Attorney until Feb. 28, 2023, § 8.16, sea wall standards, and § 8.17, Island Walk standards, previously codified by Ord. Nos. 2021-006 and 2021-002, respectively, have been renumbered as §§ 8.17 and 8.18 as set out herein. The historical notations have been retained with the amended provisions for reference purposes.
Prior to the approval of a site plan that requests bonus density pursuant to Section 8.10, and Section 8.10.1., bonus height pursuant to Section 8.12, and/or the transfer of development rights pursuant to Section 8.13, the Village and the owner of the subject property shall agree on tentative terms for a standard Development Agreement, which shall be presented to the Village Commission as support documentation for the site approval request. The Development Agreement shall reflect any additional terms imposed by the Village Commission as conditions of approval and shall be executable by the Village and the owner of the subject property following Commission approval. The Development Agreement, along with any accompanying development orders, shall vest the project with any density, height, and/or TDR approvals, notwithstanding any future amendments to either the Code or Comprehensive Plan reducing any applicable bonus or modifying the TDR process, provided that the project has not had a failure to commenced as provided herein. The agreement shall contain and address the following information, when applicable:
A.
Statement of ownership and legal description;
B.
Permitted uses and special exceptions;
C.
Minimum dimensional requirements. Such requirement shall include Lot Area and width, Setbacks, Building Height, minimum Floor Area, Accessory Structures, and other dimensional information pertinent to the project;
D.
Landscaping, parking, and signage requirements;
E.
Applicable design guidelines. The applicant shall submit as a requirement of the master development agreement, conceptual rendering, plans, schematics, and/or other design document, as may be necessary to illustrate that the project is meeting the design guidelines for the district in which the project is located;
F.
Project phasing;
G.
The method by which common areas facilities and areas visible to the public shall be maintained. This includes whether the project will be owner operated or under the control of condominium association, special taxing district, and/or community development district;
H.
The maximum number of Dwelling Unit[s], maximum square footage of any commercial uses, and/or the maximum number of hotel rooms;
I.
Improvements to infrastructure that may be required by the UDLC and/or Miami-Dade County by or agreed upon by the Village and the owner of the subject property;
J.
Expiration date; and
K.
Any other information deemed pertinent by the planning and zoning official or Village Commission. The Planning and Zoning Official may waive any of the master development agreement submittal items or portions of items.
The applicant or its successor in interest shall submit yearly progress reports to the Village beginning within six (6) months of the date of approval and within one (1) year thereafter. Pursuant to Section 5.10 of the UDLC, all site plan approvals for which construction has not been initiated shall expire two (2) years from the date of final approval, unless otherwise extended by Commission at initial site plan approval or upon request for extension. Development agreements entered into pursuant to this section shall follow the time frame of the corresponding site plan approval and shall also expire concurrently with the expiration of the site plan approval. An extension of the project site plan pursuant to Section 5.10 of the UDLC shall also extend the development agreement for the corresponding project. Initiating construction shall mean the submission of an application for a building permit for the project.
(Ord. No. 2019-009, § 2, 7-22-19; Ord. No. 2022-013, § 3(Exh. B), 11-2-22; Ord. No. 2024-004, § 2(Exh. A), 3-12-24)
Editor's note— Ord. No. 2019-009, § 2, adopted July 22, 2019, enacted a new § 8.15 and renumbered the former § 8.15, supplemental use regulations, and § 8.16, supplemental development standards, as §§ 8.16 and 8.17 as set out herein. In addition, § 8.17, sea wall standards, and § 8.18, Island Walk standards, previously codified by Ord. Nos. 2021-006 and 2021-002, respectively, have been renumbered as §§ 8.18 and 8.19 as set out herein. The historical notations have been retained with the amended provisions for reference purposes.