ALPHARETTA DOWNTOWN CODE
Editor's note—Ord. No. 757, § 1(Exh. A), adopted May 9, 2018, changed the title of Art. 4 from "Site Definitions" to read as herein set out.
1.1.1. Title.
This ordinance shall be known as the "Alpharetta Downtown Code" or may be internally citied as "this code."
The intent and purpose of this code is to enable and support the implementation of the following policies:
A.
That the Downtown Alpharetta is the focal point for high-quality, mixed-use development in the City of Alpharetta as established in the Downtown Master Plan and the City of Alpharetta 2030 Comprehensive Plan.
B.
That within Downtown Alpharetta, ordinary activities of daily life should be able to occur within walking or bicycling distance of most dwellings.
C.
That Downtown Alpharetta should serve people of all ages and allow residents to remain in the community as they age.
D.
That interconnected networks of streets should be designed to disperse traffic and reduce the length and number of automobile trips.
E.
That a range of high-quality and aesthetically compatible housing options should be provided to accommodate different needs in the community.
F.
That the quality-of-life in existing neighborhoods should be preserved and protected.
G.
That development patterns should make walking and bicycling safer and more pleasant.
H.
That a range of useable open spaces including parks, squares, playgrounds, and preserved environmentally sensitive areas should be distributed throughout Downtown Alpharetta.
I.
That buildings and landscaping should be coordinated in order to contribute to Downtown Alpharetta's physical design and sense of place.
J.
That development should adequately accommodate automobiles while respecting the pedestrian and the design of public areas.
K.
That public buildings, gathering places, and areas for community events should be provided as locations that reinforce community identity.
L.
That public buildings should be distinctive and appropriate to a role more important than the other buildings that constitute the fabric of the area.
M.
That the harmonious and orderly development and redevelopment of Downtown Alpharetta should be secured through these regulations.
1.2.1. Territorial Application.
This code applies within the study area of the City of Alpharetta Downtown Master Plan, adopted by the City of Alpharetta Mayor and city Council on February 23, 2015, subject to the following:
A.
The study area of the City of Alpharetta Downtown Master Plan shall be shown on the Official Zoning Map and labeled "Downtown Overlay." Heritage Design Areas identified in Sec. 2.10 shall also be shown on the Official Zoning Map and labeled "Heritage Design Area."
B.
Within the Downtown Overlay the requirements of Article 2 apply in addition to the requirements of the zoning district in which a parcel lies.
C.
Within the Downtown Overlay the requirements of Article 3 only apply when a parcel has been rezoned to a Downtown Zoning Code in accordance with the requirements for such found in Section 4.2 of the Unified Development Code.
(Ord. No. 757, § 1, 5-9-2018)
1.2.2. Conformance Requirements.
A.
All buildings, structures or land, in whole or in part, must be used or occupied, in conformance with this code. All buildings or structures, in whole or in part, must be erected, constructed, moved, enlarged or structurally altered in conformance with this code.
B.
Nothing in this code shall require any change in the plans, construction or intended use of a building or structure for which a lawful permit has been issued or a lawful permit application has been accepted before the effective date of this code, provided that the construction under the terms of such permit is diligently followed until its completion.
1.2.3. Conflicting Provisions.
A.
It is not the intent of this code to interfere with or abrogate or annul any easements, covenants or other agreements between parties; provided, however, that where this code imposes a greater restriction upon the use of property or premises or upon the height of buildings, or requires greater space than is imposed or required by other resolutions, rules or regulations, or by easements, covenants or agreements, the provisions of this code shall govern.
B.
Nothing herein shall be construed as repealing or modifying the conditions of operation or conditions of site development accompanying those zoning approvals, variances or use permits issued prior to the existence of this code; however, modification or repeal of these past conditions of approval may be accomplished through a zoning change in accordance [with] Section 4.2 of the Unified Development Code.
1.2.4. Use of Words and Phrases.
Terms used throughout this code may be defined in Article 4 Definitions of Terms. Article 4 contains regulatory language that is integral to this code. Those terms not defined in Article 4 shall be accorded their commonly accepted meanings. In the event of conflicts between these definitions and those of Section 1-4 of the Unified Development Code, those of this code shall take precedence.
1.3.1. Downtown Zoning Districts Established.
A.
The following "Downtown Zoning Districts" are established within the area regulated by this code:
1.
Downtown Core (DT-C)
2.
Downtown Mixed-Use (DT-MU)
3.
Downtown Live-Work (DT-LW)
4.
Downtown Residential (DT-R)
B.
Parcels shall retain their current zoning that existed on the effective date of this ordinance.
1.3.2. Relationship between Land Use Categories and Downtown Zoning Districts.
The land use categories established by the Comprehensive Land Use Plan may be implemented by the establishment of appropriate zoning districts within each category. The Downtown Zoning Districts permitted within each land use category are restricted to the following:
A.
The "Central Business District" land use category permits the "Downtown Core" zoning district.
B.
The "Mixed-Use District" land use [category] permits the "Downtown Mixed-Use" zoning district.
C.
The "Mixed-Use Live/Work District" land use category permits the "Downtown Live-Work" zoning district.
D.
The "Downtown Residential Density" land use category permits the "Downtown Residential" zoning district.
E.
All other land use categories permit the zoning districts identified in the Comprehensive Land Use Plan.
(Ord. No. 808, § 4(Exh. D), 9-8-2020)
Zoning changes to a "Downtown Zoning District" shall only occur in conformance with Section 1.3.2 and in accordance with Section 4.2 of the Unified Development Code.
2.1.1. Applicability.
A.
The requirements of this Article apply to all parcels within the Downtown Overlay unless expressly stated otherwise in this Article.
B.
The requirements of the Unified Development Code also apply in all Downtown Districts unless expressly stated otherwise in this Article.
C.
This Article does not change the permitted use or density of a property within the Downtown Overlay. Land and structures must be used in accordance with the standards of the underlying zoning district.
D.
This Article does change the permitted form and design of a property subject to the Downtown Overlay. When requirements of this Article conflict with any other requirement of the Unified Development Code or the Alpharetta Downtown Design Guidelines, the requirements of this Article shall prevail.
E.
When the word "street" is used in this Article it means both public and private streets unless stated otherwise.
2.2.1. Intent.
A.
The intent of the block and access standards is to provide a well-connected street network. Large blocks with limited connectivity discourage walking, contribute to street congestion, and add driving distance that can negatively impact emergency services. New streets should also be designed to consider the future development identified in the Alpharetta Downtown Master Plan.
B.
The intent of the access standards is to provide safe and convenient vehicular and pedestrian access within developments and between adjacent developments and to lessen traffic congestion and increase connectivity. Pedestrian, bike, and vehicular access should be safe, direct and convenient.
A.
Sites greater than 4 acres in size must incorporate existing or new streets that terminate at other existing or new streets to form an interconnected network with the maximum block perimeter lengths that follow:
B.
In addition to the block standards above, blocks containing exclusively 'For Sale' detached dwellings must be wide enough to provide two tiers of lots, except where fronting on arterial streets prevented by topographical conditions or size of the property, in which case the City Transportation Engineer may require and/or approve a single tier of lots.
C.
Other than stub-out streets, dead-end streets are not allowed unless a variance is granted for topographic hardship.
D.
Block Measurement.
1.
A block is bounded by a public or private right-of-way (not including an alley). All public or private rights-of-way proposed as part of a development must be improved with a street.
2.
Block perimeter is measured along the edge of the property abutting the public or private right-of-way, except for the measurement of dead-end streets, which are measured from intersecting centerlines.
3.
The City Transportation Engineer may modify the block perimeter requirements when steep slopes in excess of 25%, preexisting development, tree protection areas, stream buffers, cemeteries, open space, or easements would make the provision of a complete block infeasible.
4.
Where the block pattern is interrupted by public parkland, including greenways, that is open and accessible to the public, pedestrian access points must be provided with a minimum spacing equal to half of the maximum block perimeter.
E.
No public or private street within the Downtown Overlay, including alleys, may be gated.
A.
General. When land is subdivided or otherwise developed, parcels and buildings must be arranged and designed so as to allow for the opening of future streets and must provide access to those areas not presently served by streets. No development may be designed to completely eliminate street access to abutting parcels without current street access.
B.
Stub-Out Streets.
1.
Stub-Out Required.
a.
Where a development abuts unsubdivided land, stub-out streets within the new development must be installed to the meet the block standards of Section 2.2.2.
b.
The stub-out street right-of-way, pavement, and curbing must extend to the boundary of the abutting parcel to the point where the connection to the anticipated street is expected.
c.
Where a stub-out street is provided, a sign noting the future street extension must be posted at the applicant's expense.
2.
Connecting to an Existing Stub-Out Street. If a stub-out street exists on an abutting parcel, the street system of any new development must connect to the stub-out street to form a through street.
3.
Exception. The City Transportation Engineer may eliminate the requirement for a stub-out street or require pedestrian and bicycle only access when steep slopes in excess of 25%, freeways, waterways, tree conservation areas, stream buffers, cemeteries, open space or easements would make the provision of a stub-out street infeasible.
All lots in districts allowing commercial uses, attached 'For-Sale' dwellings, or 'For-Rent' dwellings, and all lots where the adopted comprehensive plan land use classification would allow for rezoning to such district, that abut another lot in a district or land use classification allowing either commercial uses, attached 'For-Sale' dwellings, or 'For-Rent' dwellings must comply with the following standards.
A.
Internal vehicular circulation areas must be designed and installed to allow for cross-access between abutting lots.
B.
Vehicle cross-access may not be gated.
C.
When an abutting lot is vacant or already developed, a stub for a future cross-access connection must be provided at the point where the connection to the abutting parcel is expected to occur in the future.
D.
If a cross-access driveway stub exists on an abutting parcel, the internal vehicular circulation area must connect to the stub to form a cross-access connection.
E.
When cross-access for vehicles is deemed impractical by the City Transportation Engineer on the basis of topography, the presence of natural features, or vehicular safety factors, the requirement for cross access may be waived. Bicycle and pedestrian connections must be provided between abutting properties when cross-access is waived.
F.
Property owners who establish cross-access easements must:
1.
Allow pedestrian and vehicular access to all properties on the same block face as the property owner establishing the cross-access. Pedestrian and vehicular access is contingent upon the granting of reciprocal vehicular, bicycle, and pedestrian access rights to the granting property;
2.
Record an easement allowing cross-access to and from properties served by the cross-access easement;
3.
Record a joint maintenance agreement requiring each property owner to maintain the vehicular, bicycle, and pedestrian access areas on their lot;
4.
Contain a provision prohibiting the erection of fences, walls and other obstructions that prevent the use of vehicular, bicycle, and pedestrian access ways;
5.
Include a statement that the cross-access agreement is conveyed with the land, is binding on all successors, heirs and assigns and that the easement rights are perpetual; and
6.
The cross access agreement must be signed by all of owners of the granting property.
2.3.1. Intent.
A.
The intent of this Section is to provide a palette of street types and design elements that reflect the character of different areas within the Downtown Overlay as established in the Alpharetta Downtown Master Plan.
B.
The regulations provide adequate accommodations for vehicles, cyclists, and pedestrians.
C.
The street types defined in this Section provide a guide to balancing the needs of all modes of travel. Modifications to these types may be made by the City Transportation Engineer.
D.
The appropriate street type will be selected by the City Transportation Engineer based on the Roadway Plan in the Alpharetta Master Plan and engineering and land use context factors, including anticipated vehicle volumes.
A.
When a development proposes the construction of a new public or private street, the requirements of this Section apply.
B.
When constructing a new street or reconstructing an existing street, sidewalks, bike lanes, curb and gutter or an alternative curb and gutter to accommodate GI/LID, and street trees must be installed and constructed in accordance with this Section and the City of Alpharetta Department of Engineering/Public Works Design Standards.
C.
Use of multi-functional stormwater BMPs is expressly allowed and encouraged in the ROW, including streetscape landscape bioretention areas and stormwater planters, stormwater street trees, curb bulbouts and medians with bioretention, and vegetated swales. Such stormwater BMPs may receive stormwater credit for the site if part of an approved stormwater management plan and with a long-term maintenance agreement.
D.
Traffic calming design elements, such as intersection bulbouts can help moderate vehicle speeds on Downtown Streets; multifunctional bulb-outs that include runoff reduction measures for stormwater management are encouraged. Landscaping and traffic calming techniques that are ideal on Downtown Streets include, but are not limited to, street trees with grated wells, bioretention areas/planters, curb bulbouts with bioretention.
E.
Existing streets may continue serving existing development in their current configuration; however, they must not be extended or substantially rebuilt except in conformance with this Section.
(Ord. No. 732, §§ 37—40, 2-6-2017)
A.
All new or extended public or private streets must meet the following standards unless modified by the City Transportation Engineer for the following public purposes:
1.
To provide on- or off-street bicycle facilities;
2.
To provide wider sidewalks or planters;
3.
To provide a median, left turn lane, or combination therefore;
4.
To provide bulb-outs;
5.
To provide hardscape surface in otherwise landscaped planters in order to provide pedestrian access to adjacent on-street parking;
6.
To increase or decrease the travel lane width; and
7.
To provide traffic calming or pedestrian safety measures.
8.
To provide multi-use vegetated runoff reduction measures in street planter and as street tree areas.
(Ord. No. 732, § 41, 2-6-2017)
B.
Arterial Street Residential.
C.
Arterial Street Commercial/Mixed-Use.
D.
Collector Street Residential.
E.
Collector Street Commercial/Mixed-Use.
F.
Green Street.
G.
Local Street Residential.
H.
Local Street Commercial/Mixed-Use.
I.
Residential Alley.
J.
Commercial/Mixed-Use Alley.
K.
Representative Alternative Streetscape Standard along an Existing Street.
1.
Purpose. Sec. 2.3.4.C.6 allows alternative streetscape standards to be approved by City Transportation Engineer under certain conditions. The purpose of this section is to illustrate one option for how this street type could be arranged.
(Ord. No. 757, § 1(Exh. A), 5-9-2018)
2.3.4. Existing Streets, Streetscapes.
A.
Applicability. A building or site may be renovated or repaired without meeting the requirements of this Section, provided any increase in gross floor area or improved site area does not exceed 25%.
B.
Exceptions. This does not apply as follows:
1.
On a parcel zoned R-12 or R-15 when such parcel is located within a recorded subdivision that existed on the date of adoption of this ordinance and when no sidewalks currently exist adjacent to the parcel.
2.
On a parcel for which a Land Disturbance Permit or Building Permit is issued but where the Director of Community Development determines that the permit is for an accessory use or structure to the principal use or structure or for minor repairs or additions to the principal building or structure in existence.
C.
Streetscapes Required.
1.
Existing streets that do not meet the parallel parking, planter, and sidewalk standards of the Downtown Alpharetta Streetscape Table must be brought into compliance with said standards along the site's frontage prior to the issuance of Certificate of Occupancy, except as indicated in 5 below.
2.
On existing streets where there is insufficient right-of-way for the required streetscape and parking improvements, the right-of-way needed for such improvements may be expanded by mutual agreement between the property owner and the entity holding the right-of-way, or a public access easement may be provided to the City to meet the required improvements.
3.
Where an easement is provided to the City and a parcel is zoned a Downtown Zoning District, the back of the minimum required sidewalk (adjacent to the lot) may be considered the lot line for the purpose of establishing yards, may not be included in lot coverage calculations, and may not be counted in minimum lot size requirements for new lots.
Downtown Alpharetta Streetscape Table
Note 1: Along at least one side of Thompson Street a 12-foot wide multi-use trail must be provided in lieu of the required sidewalk in accordance with the Downtown Master Plan. Such trail may be on the north or south side of the street, as determined by the City Transportation Engineer. The planter width may also be increased to allow the trail to run through existing or new open spaces.
4.
Where a publically funded streetscape project using alternative planter standards was installed adjacent to a parcel after January 1, 2005, the planter standards of Downtown Alpharetta Streetscape Table do not apply.
5.
The City encourages the use of multi-functional runoff reduction measures in the streetscape, including bioretention areas, stormwater tree box, and planter box. The dimensional standards for planting area, tree spacing, planting type and utility placement may be varied to accommodate runoff reduction measures.
6.
Alternative streetscape standards along an existing local street may be approved by City Transportation Engineer when all of the following conditions are met:
a.
The site has less than 100 feet of frontage along an existing local street;
b.
The site is along a block that is transitioning from for-sale detached dwellings into more intense uses;
c.
The site is exclusively used for detached houses, cottage courts, semi-detached houses, or townhouses; and
d.
Compliance with this section would result in a streetscape that extends 4 feet or greater beyond the existing right-of-way.
e.
An example of one possible alternative streetscape standard is shown in Sec. 2.3.3.K.
(Ord. No. 732, § 42, 2-6-2017; Ord. No. 757, § 1(Exh. A), 5-9-2018)
A.
Multi-use trails shall have an average width of 12 feet, but their width may be periodically reduced to 8 feet where topography, wetlands, stream buffers, existing buildings, existing trees, or other existing conditions render this requirement infeasible. The maximum length of this reduced width is 400 feet.
B.
A multi-use trail shall be required instead of a sidewalk along any new or existing street when the location is identified for a multi-use trail in the Downtown Master Plan or other plan that has been adopted by the City of Alpharetta.
C.
In approving a multi-use trail in lieu of a sidewalk, the City Transportation Engineer, upon application, shall reduce the required planter width to a minimum width of 5 feet if the proposed reduction is supported by the public health, safety and general welfare.
D.
Buildings shall maintain a minimum setback of twenty-feet (20') from a multi-use trail.
(Ord. No. 864, § 7(Exh. G), 10-16-2023)
2.3.6. Improvements along State Highways.
A.
For any development that abuts a State highway or other right-of-way controlled by the State of Georgia, improvements to the roadway and the location and design of any street or driveway providing access from the State highway must comply with the standards and requirements of the Georgia Department of Transportation.
B.
An approved permit for proposed access or improvements is required by Georgia Department of Transportation and must be incorporated into the construction drawings for the project prior to the issuance of a Land Disturbance Permit.
A.
Defined. A zone adjacent to the curb intended for planting street trees and the placement of street furniture including light poles, litter receptacles and similar items.
B.
Street trees shall be planted in the planter as follows:
1.
Where no overhead utilities exist, shade trees must be planted a maximum of 40 feet on center in the planter. Newly planted trees shall be a minimum of 3½ inches in caliper, and shall be limbed up to a minimum of 7 feet.
2.
Where overhead utilities exist, one understory tree must planted a maximum of 25 feet on center in the planter, subject to approval of the overhead utility provider and the City Arborist.
3.
Trees shall have a minimum 6 feet by 10 feet pervious landscape planting area. Tree grates are not allowed unless the City Arborist determines that they will not negatively impact tree health.
2.4.1. Vehicle Parking.
A.
Every use must provide and maintain vehicular parking in accordance with the Vehicular Parking Requirements Table.
B.
Vehicular Parking Requirements Table.
C.
Parking in the following locations may be used to satisfy the minimum requirements of the Vehicular Parking Requirements Table:
1.
Off-street parking located on the same site or lot as the use it serves;
2.
On-street parking located adjacent to and on the same side of the street as the site or lot containing the use it serves; and
D.
When a use provides more than 120% of the minimum number of spaces required by the Vehicular Parking Requirements Table, any additional spaces in a surface parking lot must be constructed of pervious paving materials. For the purpose of conforming to this requirement, any on-street spaces or off-street spaces in parking structures must be counted towards satisfying the minimum requirement.
E.
Parking In-Lieu Fees.
1.
The city council may authorize vehicular parking requirements to be satisfied through payment of parking in-lieu fees according to the following fee schedule:
Parking In-Lieu Fee Schedule
2.
Applications to use parking in-lieu fees must be made to the city council, which will then hold a public hearing to approve or deny the application. The city council must consider the following in reviewing an application for parking in-lieu:
a.
The availability of parking in the Downtown Overlay:
b.
The availability of alternative transportation in the Downtown Overlay;
c.
The impact on the public health, safety, and general welfare; and
d.
Other considerations deemed material to the application by city council.
3.
Following approval of a parking in-lieu fee application, the fee must be paid in a lump sum either:
a.
Prior to the issuance of a building permit; or
b.
Prior to the issuance of a business license for the use for which the parking is required, if no building permit is required.
4.
When parking in-lieu fees are utilized, the following apply if the use is changed or discontinued:
a.
If a use is enlarged or replaced by a use that requires more parking, the additional parking requirement may be met by paying additional parking in-lieu fees.
b.
If a use is reduced in area, or wholly or partially becomes vacant, or is replaced by a use that requires less parking, no additional parking in-lieu fees are required.
c.
If a use is destroyed, the property owner may count its parking in-lieu fee spaces towards meeting the requirement of new uses built on-site, subject to "a" and "b" above.
d.
A change of ownership or the dividing or merging of lots will not affect parking in-lieu fees or any determination that parking requirements have been met according to fees paid for a particular use, except when the change of ownership results in one of the conditions identified in "a" through "c" above.
F.
On-Site Parking Special Exceptions.
1.
The following applies in place of Section 4.5.5 of the Unified Development Code when some or all of the required on-site parking is not provided and said requirement is not otherwise fully or partially satisfied through the payment of parking in-lieu fees.
2.
Parking special exceptions shall be heard by the Planning Commission and decided by the City Council utilizing the same process required for conditional use applications under Section 4.2. of the Unified Development Code, except the conditional use standards of Section 4.2.3.C. shall not apply.
3.
Parking special exceptions may be granted when the character of the use is such that the full provisions of on-site parking facilities is unnecessary, or when a site is unable to accommodate the required number of parking spaces due to the site's size, shape, topography, existing buildings, existing trees, other natural features, or required buffers.
4.
The City Council may impose conditions of approval on the special exception in order to protect the public health, safety, and general welfare.
5.
In no case shall a special exception be granted from the conditions of approval imposed on a property through a zoning change granted by the City Council.
(Ord. No. 732, § 43, 2-6-2017; Ord. No. 736, § 3, 3-20-2017; Ord. No. 753, § 1(Exh. A), 3-19-2018; Ord. No. 859, § 1(Exh. A), 6-26-2023)
A.
Facilities that provide or require 25 or more vehicle parking spaces must provide a minimum of 1 bicycle parking space, plus 1 space for each additional 25 provided vehicle parking spaces, provided that no site may have fewer than 3 spaces nor be required to exceed 30 bicycle spaces.
B.
Bicycle parking facilities must comply with the following provisions.
1.
Each required bicycle parking space must be at least 2 feet by 6 feet. Where a bike can be locked on both sides of a bicycle rack without conflict, each side can be counted as a required space.
2.
Bicycle racks must be securely anchored, be easily usable with both U-locks and cable locks, and support a bicycle at 2 points of contact to prevent damage to the bicycle wheels and frame.
3.
Bicycle parking must be provided in a well-lit area.
4.
Spacing of the bicycle racks must provide clear and maneuverable access.
5.
Bicycle parking may be placed within the public right-of-way, provided the encroachment is approved by the City Transportation Engineer.
6.
Bicycle parking spaces must be as close as or closer than the nearest vehicle parking space (as measured along a pedestrian walkway from the door of the use the parking serves).
A.
Applicability. The following applies to driveways, including those serving alleys, but not to new streets in conformance with Section 2.3.3.
B.
Width. Unless approved by the City Transportation Engineer or required by the Georgia Department of Transportation along a State highway, the maximum width of curb cuts, not including flares or returns at the throat of the facility, for entrances, exits, service drives and similar facilities shall be 24 feet for two-way entrances and 12 feet for one-way entrances.
C.
Number. The maximum number of driveways allowed on a site shall not exceed an amount equal to one driveway for every 300 feet of total street frontage or fraction thereof. All parcels are permitted at least one driveway.
D.
Location. Driveways may not be located on an arterial street when access is available from a collector or local street.
2.4.4. Design of Parking Structures.
A.
When a parking structure fronts an arterial or collector street its ground story must have active uses (such as, but not limited to, residential, commercial, office or civic space) located between the parking structure and the closest adjacent street (not including an alley). Such active use shall have a minimum depth of 20 feet.
B.
Where upper stories of structured parking are adjacent to or visible from any street, they must be screened so that cars and ramps are not clearly visible from ground level view from the adjacent parcel or the adjacent street (not including an alley).
C.
Structured parking facades adjacent to or visible from any street must have the appearance of a horizontal storied building.
A.
On-site loading space is not required.
B.
Loading areas must be located to the rear of buildings. Loading areas must not be placed between a building and the closest adjacent street.
C.
Screening. If a loading area is provided, it must meet the following.
1.
Where a loading dock designed for tractor-trailers is placed between a shared lot line or building and the closest adjacent street (not including an alley), the entire length of the loading area must be screened.
2.
Screening must consist of either:
a.
An 8-foot high wall compatible with the principal building in terms of texture, quality, material and color; or
b.
Evergreen plant material that can be expected to reach a height of 8 feet with a spread of 4 feet within 3 years of planting.
2.4.6. Vehicle Access and Parking Locations.
A.
No driveway or off-street parking lots may be located between a building and the closest street unless an intervening approved building type exists.
B.
Off-street parking for the following must be accessed from alleys:
1.
Townhouses on lots of any width.
2.
All other building types on lots less than 50 feet in width.
C.
Where a garage faces a street the garage must be recessed a minimum distance of 20 feet behind the front building façade.
D.
Each 'For Sale' dwelling unit shall have a minimum 18' long and 10' wide paved driveway, as measured from the garage to the back of sidewalk, or back of curb where a sidewalk is not provided.
E.
Enclosed tandem parking spaces shall only count for one required parking space, since only one space is fully accessible.
(Ord. No. 772, § 7, 2-4-2019)
_____
2.5.1. Applicability.
A.
New Construction. Any new building or site improvement must comply with the landscaping and screening requirements of this Section.
B.
Maintenance and Repair. An existing building or site may be repaired, maintained or modernized without providing additional landscaping or screening, provided there is no increase in gross floor area or improved site area.
C.
Additions.
1.
When an existing building, use or site is increased in gross floor area or improved site area by up to 25% cumulatively, landscaping and screening is required for the additional floor or site area only.
2.
When an existing building, use or site is increased in gross floor area or improved site area by more than 25% cumulatively, both the existing building, use or site and the additional floor or site area must conform to the landscaping and screening requirements of this Section.
D.
Change in Use. A change in use does not trigger the application of these requirements except when there is a specific use standard requiring landscaping or screening for the new use.
A.
Yards between a parking lot and a street must comply with Section 2.5.3.
B.
Yards greater than 5 feet in depth and located between a building and the closest adjacent sidewalk along a street must be landscaped with grass, trees, shrubs, hedges and other landscaping materials for their entire width, with the exception of areas used for:
1.
Front porches and stoops;
2.
Outdoor dining or display;
3.
Pedestrian walkways used to access a street-facing pedestrian entrance;
4.
Driveways used to access off-street parking; and
5.
Amenity space, where required by Article 3.
C.
Yards greater than 10 feet in depth must be planted with one tree for each 30 feet of street frontage or portion thereof.
D.
Vegetated runoff reduction measures shall be allowed in the designated yards, if properly designed to provide stormwater management and screening functions.
(Ord. No. 732, § 43, 2-6-2017)
2.5.3. Parking Lot Landscape Strips.
A.
Applicability. All surface parking areas (of any size) abutting a street (not including an alley) must be screened using one of the following options.
B.
Landscape Strip with Shrubs. A minimum 10 feet wide landscape strip planted with a minimum of 10 shrubs per 35 linear feet of street frontage, excluding driveway openings. Shrubs shall be provided to screen paved areas and parking lots from the right-of-way. Shrubs shall be at least 2 feet tall at time of planting. They must be planted 2 rows deep, and provide a screen within 3 years of planting.
C.
Landscape Strip with Wall.
1.
A 2.5 feet high wall in a minimum 4-foot planting strip.
2.
Walls must be close to the parking lot in order to provide a minimum 2-foot landscaped area facing the street.
3.
Walls must be closed and be constructed of one or a combination of the following: decorative blocks; brick; stone; cast-stone; split-faced block; or stucco over standard concrete masonry blocks.
D.
Landscape Strip with Berm.
1.
An earth berm a minimum of 2.5 feet higher than the finished elevation of the parking area, planted with 5 shrubs for every 35 linear feet of street frontage, excluding driveway openings.
2.
The berm must contain a rounded crown suitable for planting, and a stabilized side slope of no greater than 3:1.
E.
Landscape Strip with Grade Change. A 6-foot landscaped strip with a minimum 3-foot grade drop from the street to the parking area, planted with a minimum of 5 shrubs for every 35 linear feet of street frontage, excluding driveway openings.
F.
Location. A required landscape strip must be located at the outer perimeter of the parking area and must be provided along the entire parking area abutting the street, excluding breaks for pedestrians, bicycles and driveways.
G.
Plant Material. Required shrubs must be a minimum of 2.5 feet in height at time of planting. 70% of the required amount of shrubs must be evergreen.
A.
Service Areas.
1.
Trash and recycling collection and other similar service areas must be located to the side or rear of buildings and may not between a building and the street.
2.
Service areas must be screened on 3 sides by a wall a minimum 6 feet in height and on the 4th side by a solid gate at a minimum of 6 feet in height.
3.
The wall must be opaque and be constructed of one or a combination of the following: decorative blocks; brick; stone; cast-stone; split-faced block; or stucco over standard concrete masonry blocks.
4.
The gate must be self-locking and maintained in good working order.
B.
Roof-Mounted Equipment.
1.
Roof-mounted equipment must be set back at least 10 feet from the edge of the roof and screened from ground level view from abutting parcel or abutting street (not including an alley).
2.
New buildings must provide a parapet wall or other architectural element that is compatible with the principal building in terms of texture, quality, material, and color that fully screens roof-mounted equipment from ground level view.
3.
For buildings with no or low parapet walls, roof mounted equipment must be screened on all sides by an opaque screen compatible with the principal building in terms of texture, quality, material, and color.
C.
Wall-Mounted Equipment.
1.
Wall-mounted equipment located on any surface that is visible from a street (not including an alley) must be fully screened by landscaping or an opaque wall or fence that is compatible with the principal building in terms of texture, quality, material, and color.
2.
Screening must be of a height equal to or greater than the height of the mechanical equipment being screened.
D.
Ground-Mounted Equipment
1.
Ground-mounted mechanical equipment that is visible from a street (not including an alley) must be fully screened by landscaping or an opaque wall or fence that is compatible with the principal building in terms of texture, quality, material and color.
2.
Screening must be of a height equal to or greater than the height of the mechanical equipment being screened.
2.5.5. Design and Installation.
A.
Plant Material.
1.
Plant materials must be hardy to zone 7b in accordance with the U.S. Department of Agriculture's Plant Hardiness Zone Map.
2.
Plant materials must be able to survive on natural rainfall once established with no loss of health.
3.
Tree height is measured from the top of the root ball to the tip of the main stem.
4.
No artificial plants, trees, or other vegetation may be installed as required landscaping and screening.
2.5.6. Maintenance of Landscaping.
A.
Responsibility. The property owner is responsible for maintaining all required landscaping and screening in good health and condition. Any dead, unhealthy, damaged or missing landscaping and screening must be replaced with landscaping and screening that conforms to this Section within 90 days (or within 180 days where weather concerns would jeopardize the health of plant materials) as approved by the City Arborist.
B.
Soil Erosion.
1.
All planting areas must be stabilized from soil erosion immediately upon planting and must be maintained for the duration of the use.
2.
Grass areas must be sodded prior to the issuance of a Certificate of Occupancy. If grass seed must be used, it must be a variety that may be reasonably expected to produce full coverage of the area.
C.
Pruning and Trimming.
1.
All required landscaping must be allowed to reach its required size and must be maintained at no less than required size.
2.
To prevent long-term harm to the health of required landscaping, all pruning of shrubs and trees must be done in accordance with the International Society of Arboriculture Standards entitled "ANSI A300 Standards."
3.
"Topping," defined as removal of more than one-third of the leaves and branches of a tree, as measured from the lowest branch on the trunk of the tree to the top of the tree, is prohibited, except where necessary to maintain public overhead utilities.
_____
2.6.1. Applicability.
A.
Neighborhood compatibility measures are required when a lot zoned or used for a rental dwelling, office, institutional, commercial, industrial uses, or occupied by a non 'For-Sale' residential use adjoins a protected district.
B.
Protected district as used in this Section means any property zoned for or used by 'For-Sale' residential purposes. Where commercial or industrial districts or developments abut R-10M zoning districts, the R-10M zoning district is considered a protected district and neighborhood compatibility measures also apply.
A.
A 50 feet wide undisturbed buffer is required as shown in the Downtown Buffer Table.
B.
Except as otherwise provided, herein, the buffer shall be preserved in its natural undisturbed state, except that sparsely planted buffers shall be enhanced with additional plant material. Enhancement plants must provide an opaque screen within two years of planting and must meet the following standards:
1.
Plants must be a minimum of 5 feet in height at time of installation;
2.
At least 75% of the total number of plants installed must be evergreen species; and
3.
Plants will be planted and spaced as shown in the Downtown Buffer Table.
C.
Buffers may not contain any surface parking or storm water detention basins, or any structures except that the Director of Community Development may approve underground facilities within the buffer or the crossing of the buffer for the purpose of extending utilities. The Community Development Director may approve vegetated runoff reduction measures within the buffer. The planting requirements in A. and B. above may be varied to accommodate vegetated runoff reduction measures as part of an approved stormwater management plan, if properly designed to provide stormwater management and screening functions.
D.
Stream buffers must be replanted where disturbed for approved access and utility crossings. Replacement plants must be approved by the City Arborist.
E.
All buffer plantings are subject to the approval of the Director of Community Development.
(Ord. No. 732, §§ 44, 45, 2-6-2017)
_____
All building setbacks are measured from the inside edge of the required buffer.
2.6.4. Transitional Height Plane.
A.
A building must not extend into a 45-degree angular plane projecting over the subject property measured from a height of 35 feet at the side interior or rear setback line.
B.
The transitional height plane ends at any public street (not including an alley) or 60 feet from the protected district lot line, whichever is less.
The following rules apply to all buildings in the Downtown Overlay.
2.7.1. Descriptions.
Within the Downtown Overlay building types are used to regulate the design of buildings. Each building type is described below. A building's building type is determined by the Director of Community Development. Within Downtown Zoning District, building types are subject to the additional use requirements of the applicable zoning district. All graphic depictions of building types are for illustrative purposes only. Note that these building types are for zoning purposes only, and not linked to the Building Code. Freestanding parking structures are not considered to be a building type.
A.
Detached House. A building type that accommodates one dwelling unit on an individual lot with yards on all sides. Not intended for nonresidential uses.
B.
Carriage House. A small self-contained accessory dwelling unit located on the same lot as a detached house, semi-detached house, or townhouse but physically separated, for use as a complete, independent living facility, with provisions for cooking, sanitation and sleeping.
C.
Cottage Court. A building type designed to accommodate 5 to 10 detached dwelling units organized around a shared internal courtyard. Units cannot be vertically mixed.
D.
Semi-Detached House. A building type that accommodates two dwelling units arranged either horizontally or vertically. Not intended for nonresidential uses.
E.
Townhouse. A building type that accommodates 3 or more dwelling units where each unit is separated by a common side wall. Units cannot be vertically mixed.
F.
Walk-up Flat. A building type that accommodates 3 to 8 dwelling units vertically and horizontally integrated.
G.
Stacked Flat. A building type that accommodates 9 or more dwelling units vertically and horizontally integrated.
H.
Commercial House. A building type that accommodates nonresidential uses in a building type that resembles a detached house. Not intended for residential uses.
I.
Shopfront. A single-story building type that typically accommodates single-use retail or commercial activity.
J.
Mixed Use Building. A multi-story building type that typically accommodates ground story retail, office, or commercial uses with upper-story residential or office uses. Not for ground story street-facing residential uses along arterial or collector streets.
K.
General Building. A multi-story building type that typically accommodates nonresidential uses such as industrial, hotel, or office uses on all stories.
L.
Civic Building. A building type that accommodates civic uses. Not intended for commercial, retail, office, or residential uses.
2.7.2. Rules Specific to Building Types.
A.
Detached House. A building type that accommodates one dwelling unit on an individual lot with yards on all sides. Not intended for nonresidential uses.
B.
Carriage House. A small self-contained accessory dwelling unit located on the same lot as a detached house, semi-detached house, or townhouse but physically separated, for use as a complete, independent living facility, with provisions for cooking, sanitation and sleeping.
C.
Cottage Court. A building type designed to accommodate 5 to 10 detached dwelling units organized around a shared internal courtyard. Units cannot be vertically mixed.
D.
Semi-Detached House. A building type that accommodates two dwelling units arranged either horizontally or vertically. Not intended for nonresidential uses.
E.
Townhouse. A building type that accommodates 3 or more dwelling units where each unit is separated by a common side wall. Units cannot be vertically mixed. Not intended for nonresidential uses.
F.
Walk-up Flat. A building type that accommodates 3 to 8 dwelling units vertically and horizontally integrated.
G.
Stacked Flat. A building type that accommodates 9 or more dwelling units vertically and horizontally integrated. Intended for primarily residential uses, but may include limited ground story.
H.
Commercial House. A building type that accommodates nonresidential uses in a building type that resembles a detached house. Not intended for residential uses.
I.
Shopfront. A single-story building type that typically accommodates single-use retail or commercial activity.
J.
Mixed Use Building. A multi-story building type that typically accommodates ground story retail, office or commercial uses with upper-story residential or office uses. Not intended for ground story, street-facing residential uses along arterial or collector streets.
K.
General Building. A multi-story building type that typically accommodates nonresidential uses such as industrial, hotel, or office uses on all stories.
L.
Civic Building. A building type that accommodates civic uses. Not intended for commercial, retail, office, or residential uses.
2.8.1. Applicable.
This Section applies to the Building Types identified in Section 2.7.
A.
Fenestration is the minimum percentage of window and door glass that must cover a facade.
B.
Glass used to satisfy fenestration requirements must be unpainted, must have a transparency (visible light transmission) higher than 70%, and must have an external reflectance of less than 15%. Transparency and external light reflectance must be established using the manufacturer's specifications.
C.
Fenestration is measured from the top of the finished floor to the top of the finished floor above.
D.
When there is no floor above, fenestration is measured from the top of the finished floor to the top of the wall plate.
A.
A pedestrian entrance and walkway providing both ingress and egress, operable to residents at all times and operable to customers, visitors, and employees during business hours, is required to meet the street-facing pedestrian entrance requirements. Additional entrances off another street, pedestrian area or internal parking area are permitted, but must have the same or shorter hours of operability as the street-facing entrance.
B.
An angled pedestrian entrance may be provided at either corner of a building along the street to meet the street-facing pedestrian entrance requirements.
C.
Where a lot has frontage on a civic space instead of a street, these requirement apply to and from the civic space.
A.
Intent. The following standards are intended to ensure that certain building elements that when added to a street-facing facade are of sufficient size to be both usable and functional and be architecturally compatible with the building they are attached to.
B.
Front Porch. A raised structure attached to a building, forming a covered pedestrian entrance to a doorway.
1.
A front porch must be at least 6 feet deep (not including the steps).
2.
A front porch must be contiguous, with a width not less than 33% of the building facade from which it projects.
3.
A front porch must be roofed and may be screened, but cannot be fully enclosed.
4.
A front porch may extend up to 9 feet, including the steps, into a required front setback, provided that such extension is at least 2 feet from the vertical plane of any lot line.
5.
A front porch must not encroach into the public right-of-way or required sidewalk.
6.
Steps leading to front porches must have enclosed risers.
7.
Front porch columns must be a minimum width of 8 inches.
C.
Stoop. A small raised platform that serves as a pedestrian entrance to a building.
1.
A stoop must be no more than 6 feet deep (not including the steps).
2.
A stoop may be covered but cannot be fully enclosed.
3.
A stoop may extend up to 6 feet, including the steps, into a required setback, provided that such extension is at least 2 feet from the vertical plane of any lot line.
4.
A stoop must not encroach into the public right-of-way or required sidewalk.
5.
Steps leading to stoops must have enclosed risers.
6.
Stoop columns, where provided, must be a minimum width of 8 inches.
D.
Balcony. A platform projecting from the wall of an upper-story of a building with a railing along its outer edge, often with access from a door or window.
1.
A balcony must be at least 4 feet deep and may extend up to 6 feet into a required setback, provided that such extension is at least 2 feet from the vertical plane of any lot line.
2.
A balcony must have a clear height above the sidewalk of at least 10 feet.
3.
A balcony may be covered and screened, but cannot be fully enclosed.
4.
A balcony may encroach up to 6 feet into the public right-of-way or required sidewalk but must be at least 2 feet inside the curb line or edge of pavement, whichever is greater.
E.
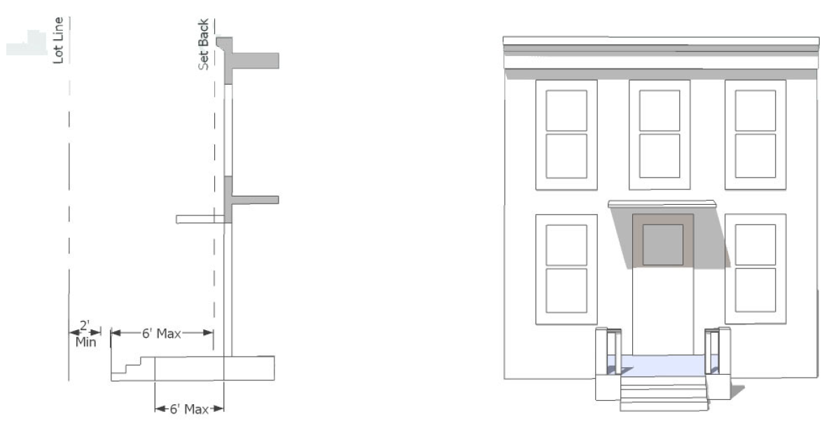
Awning/Canopy. A wall-mounted, cantilevered structure providing shade and cover from the weather for a sidewalk.
1.
An awning must be a minimum of 10 feet clear height above the sidewalk and must have a minimum depth of 6 feet.
2.
An awning may extend into a required setback.
3.
An awning may encroach up to 9 feet into the public right-of-way or required sidewalk but must be at least 2 feet inside the curb line or edge of pavement, whichever is greater.
4.
Awning must be made of canvas and may not be reflective or shiny.
5.
Awnings must have open ends called "shed awnings" to allow views into buildings.
6.
Awnings may not be internally lit.
7.
Awnings may not be narrower than nor two feet wider than the door or window opening that they serve. Where multiple doors and windows are less than two feet apart, multiple awnings may be combined into a single awning.
F.
Gallery. A covered passage extending along the outside wall of a building supported by arches or columns that is open on 3 sides.
1.
A gallery must have a clear depth from the support columns to the building's facade of at least 8 feet and a clear height above the sidewalk of at least 10 feet.
2.
A gallery must be contiguous and extend over at least 75% of the width of the building facade from which it projects.
3.
A gallery may extend into a required setback.
4.
A gallery may encroach up [to] 9 feet into the public right-of-way or required sidewalk but must be at least 2 feet inside the curb line or edge of pavement, whichever is greater.
2.8.5. General Architectural Standards.
A.
Applicability.
1.
The following applies to all buildings, except as specifically stated otherwise.
2.
Detached houses, carriages houses, cottage courts, semi-detached houses, townhouses, walk-up flats, and stacked flats must comply with either the following or Section 2.8.6, at the discretion of the applicant.
3.
Commercial houses must comply with Section 2.9.6 [2.8.6].
B.
Building Materials.
1.
Exterior finish materials on walls visible from a street or civic space must be limited to brick, manufactured stone, architectural block, natural stone, wood siding, cement-based siding, cement-based panels, and/or hard coat stucco.
2.
Hard coat stucco, when used as an exterior wall finish material on any individual building, is subject to the following additional standards:
a.
Hard coat stucco may not exceed 30% of the total wall area (excluding foundations) visible from a street or civic space. For the purpose of calculating conformance with this requirement, windows and doors are not included in the total wall area.
b.
The maximum wall length (excluding foundations) visible from a street or civic space that is finished in any continuous or discontinuous hard coat stucco is 60 feet. Authorized wall lengths finished in hard coat stucco must be separated by a minimum wall length of 60 feet that contains no hard coat stucco.
3.
Exterior finish materials must be combined only horizontally, with the visually heavier below the lighter as shown in the General Visual Weight Table. This does not apply to architectural details such as cornices, window sills, and beltlines.
4.
No more than three different exterior finish materials, textures, colors, or combinations thereof may be used on a single building, excluding materials used on windows, doors, front porches, balconies, foundations, awnings, or architectural details.
5.
Foundations must be constructed as a distinct building element that is finished in a different material or color than the exterior wall. Exposed above-ground foundations must be coated or faced in cement, hard coat stucco, brick, manufactured stone, or natural stone to contrast with façade materials.
C.
Building Facade.
1.
The following applies to all street-facing facades.
2.
Where used, shutters must match one half the width and shape of the window opening to which they are adjacent.
3.
Facades must provide visual divisions between the ground story and second story through architectural means such as courses, awnings, or a change in materials.
4.
Facades must delineate all stories above the ground story with windows, belt courses, balconies, cornice lines or similar architectural detailing.
5.
Windows above the ground story must be equally sized, vertically oriented, equally spaced and arranged in a grid pattern.
6.
Windows must be recessed a minimum of 3 inches and a maximum of 8 inches from the adjacent façade.
D.
Building Massing.
1.
Facades over 50 feet in length must incorporate wall projections or recesses a minimum of 12 inches in depth. The combined length of said recesses and projections must constitute at least 20% of the total facade length.
2.
Variation in the roofline of buildings and offsets in pitched roofs and gables are required. Parapets in individual building facades exceeding 100 continuous linear feet must be varied in height and projection and must use decorative elements such as crown moldings, dentals, brick soldier courses, or similar details.
3.
The roofs of buildings may include cisterns and greenroofs if part of an approved stormwater management plan for the site and if designed in accordance with the GA Stormwater Management Design Manual (latest version). Above-ground cisterns require architectural and/or landscape screening that compliments the architecture of the building and is of like or similar materials used in the building's construction. The cisterns and other vertical runoff reduction measures and their screening shall require approval by the Community Development Director.
(Ord. No. 732, § 46, 2-6-2017)
2.8.6. Small Residential Building Standards.
A.
Applicability. The following applies to detached houses, carriages houses, cottage courts, semi-detached houses, townhouses, walk-up flats, stacked flats, and commercial houses.
B.
Building Materials.
1.
The exterior finish material on all walls is limited to brick, manufactured stone, natural stone, wood siding, cement-based siding and/or hard coat stucco.
2.
Exterior finish materials must be combined only horizontally, with the visually heavier below the lighter as shown in the Small Residential Building Visual Weight Table. This does not apply to architectural details such as cornices, window sills, and beltlines.
3.
No more than three different exterior finish materials, textures, colors, or combinations thereof may be used on a single building, excluding materials used on windows, doors, porches, balconies, foundations, or architectural details.
4.
Foundations must be constructed as a distinct building element that is finished in a different material or color than the exterior wall. Exposed above-ground foundations must be coated or faced in cement, hard coat stucco, brick, manufactured stone, or natural stone to contrast with façade materials.
C.
Building Facades.
1.
The following apply to all street-facing facades.
2.
Windows and Doors
a.
Where used, shutters must match one half the width and shape of the window opening to which they are adjacent.
b.
Doors and windows that operate as sliders are prohibited.
c.
All windows must be vertically shaped with a height greater than width, except for windows that are part of a door or otherwise appropriate for a required architectural style. The top of said windows must generally be in alignment with the top of the adjacent door frame.
d.
Windows must have true or simulated divided lights or be one-over-one lights.
e.
Windows must include sills of wood, masonry, stone, cast stone, or terra cotta.
f.
Window frames must be recessed a minimum of 1.5 inches from the exterior façade.
3.
A stoop or front porch is required.
4.
Awnings are not allowed.
D.
Building Massing.
1.
Pitched roofs, if provided, must be symmetrically sloped no less than 5:12, except that roofs for front porches and attached sheds may be no less than 2:12.
2.
Flat roofs must be enclosed by parapets a minimum of 42 inches high, or as required to conceal mechanical equipment by Section 2.5.4.
3.
All roofs must have a minimum 25-year roof life and no visible roll roofing.
4.
Chimneys, where provided, must extend to the ground and must be faced in brick or stacked stone.
2.8.7. Architectural Style Requirements.
A.
Applicability.
1.
This section only applies to detached houses, cottage courts, and carriages houses that are accessory to a detached house or cottage court. All other building types must comply with the requirements and procedures found in the Downtown Alpharetta Design Guidelines amendment to the Alpharetta Design Review Ordinance and Design Guidelines.
2.
This section is further limited to not apply to parcels zoned R-12 or R-15 when such parcels are located within a recorded subdivision that existed on the date of adoption of this ordinance.
3.
This section is further limited to only apply to new construction, modification, addition, alteration, moving, destruction or demolition which would affect the exterior appearance of any structure, building, land, site or other object, as follows:
a.
The demolition of any building, structure or object.
b.
The moving or relocation of any building, structure or object.
c.
Except housecleaning, any material work on the exterior appearance of existing buildings by additions, reconstruction, rehabilitation, alteration or any maintenance (including exterior color), or any exterior material changes.
d.
Any new construction of a principal building or accessory building or structure subject to view from a street or public way.
B.
Administration.
1.
Conformance with this section is determined by the Director of Community Development. The Director of Community Development may grant relief from one or more requirement when:
a.
The requirement is unique to this section and is not otherwise required by the Unified Development Ordinance, another section of the Downtown Overlay, a Downtown District, or any other applicable local, State, or Federal regulation; and
b.
The relief does not cause substantial detriment to the public good or impair the purpose and intent of this Overlay.
2.
Appeals of a decision by the Director of Community Development shall be made to the Board of Appeals for interpretation.
C.
General Requirements.
1.
All buildings must be designed in one of the following architectural styles:
a.
Georgian
b.
Federal/Adam
c.
Greek Revival
d.
Neoclassical
e.
Stick
f.
Queen Anne
g.
Shingle
h.
Folk Victorian
i.
Romanesque
j.
Italianate
k.
Tudor Eclectic
l.
Beaux Arts
m.
French Colonial
n.
French Eclectic
o.
French New Traditional
2.
Specific elements of the required styles are identified in Section 2.8.7.D through M. More information on each style can be found in A Field Guide to American Houses by Virginia Savage McAlester, Residential Architectural Styles in Georgia by the Historic Preservation Division of the Georgia Department of Natural Resources, or other architectural resources.
D.
Georgian. Elements of the Georgian style are as follows:
Source: A Field Guide to American Houses by Virginia Savage McAlester
E.
Federal/Adam. Elements of the Federal/Adam style are as follows:
Source: A Field Guide to American Houses by Virginia Savage McAlester
F.
Greek Revival. Elements of the Greek Revival style are as follows:
Source: A Field Guide to American Houses by Virginia Savage McAlester
G.
Neoclassical. Elements of the Neoclassical style are as follows:
Source: A Field Guide to American Houses by Virginia Savage McAlester
Source: A Field Guide to American Houses by Virginia Savage McAlester
I.
Queen Anne. Elements of the Queen Anne style are as follows:
Source: A Field Guide to American Houses by Virginia Savage McAlester
J.
Shingle. Elements of the Shingle style are as follows:
Source: A Field Guide to American Houses by Virginia Savage McAlester
K.
Folk Victorian. Elements of the Folk Victorian style are as follows:
Source: A Field Guide to American Houses by Virginia Savage McAlester
L.
Romanesque. Elements of the Romanesque style are as follows:
Source: A Field Guide to American Houses by Virginia Savage McAlester
M.
Italianate. Elements of the Italianate style are as follows:
Source: A Field Guide to American Houses by Virginia Savage McAlester
N.
Tudor Eclectic. Elements of the Tudor Eclectic style are as follows:
Source: A Field Guide to American Houses by Virginia Savage McAlester
O.
Beaux Arts. Elements of the Beaux Arts style are as follows:
Source: A Field Guide to American Houses by Virginia Savage McAlester
P.
French Colonial. Elements of the French Colonial style are as follows:
Source: A Field Guide to American Houses by Virginia Savage McAlester
Q.
French Eclectic.
Source: A Field Guide to American Houses by Virginia Savage McAlester
R.
French New Traditional. The French New Traditional style draws upon the three French styles identified earlier in this section, but is a unique style due to the way it blends elements from the various French styles. Elements of the French New Traditional Style are as follows:
Source: A Field Guide to American Houses by Virginia Savage McAlester
(Ord. No. 748, §§ 1, 2, 9-18-2017; 758, §§ 1, 2, 5-7-2018)
2.8.8. Storefront Street Requirements.
A.
Applicability. These regulations apply to the portions of sites abutting the street segments designated in the Downtown Alpharetta Storefront Street Table.
Downtown Alpharetta Storefront Street Table
B.
Building Type Restrictions. Buildings abutting a street segment identified in the Downtown Alpharetta Shopfront Table are limited to Mixed-Use Buildings or Shopfronts. Additional building types may be provided to the rear of a conforming Mixed-Use Building or Shopfront.
2.9.1. Applicability.
A.
This Section applies to all sites in the Downtown Overlay except 'For-Sale' residential lots.
B.
'For-Sale' residential lots must comply with the full requirements of Section 3.2 of the Unified Development Code.
C.
Sites subject to this Section and with a building coverage under 70% must comply with the full requirements of Section 3.2 of the Unified Development Code.
D.
Sites subject to this Section and with a building coverage of 70% or more must comply with one of the following:
1.
The full requirements of Section 3.2 of the Unified Development Code; or
2.
All requirements of Section 3.2 of the Unified Development Code except Section 3.27.A, which are replaced with the requirements of Section 2.9.2 below.
2.9.2. Minimum Tree Density Requirements.
A.
A minimum of one Overstory tree must be provided on-site for every 400 square feet of a site not covered by buildings.
B.
The required Overstory tree must have a minimum 4-inch caliper.
C.
The required number of Overstory trees may be achieved by counting existing trees to be preserved, planting new trees according to the standards of this Section, or some combination of the two.
D.
All sites shall comply with the applicable street tree requirements in the adjacent street.
2.10.1. Purpose.
The purpose of Heritage Design Areas is to protect the unique character of established areas in Downtown Alpharetta by requiring new development to be consistent with the unique, character-defining elements of the area.
(Ord. No. 757, § 1(Exh. A), 5-9-2018)
A.
Territorial Application.
1.
The following map identifies the boundaries of the Heritage Design Areas and is incorporated by reference into the Official Zoning Map, as provided for in Sec. 1.2.1.A.
B.
General.
1.
This Section applies to all sites in designated Heritage Design Areas.
2.
The Section applies in addition to the requirements of the zoning district in which a site lies.
C.
Historic Preservation Incentive Zoning. When a site includes one or more historic properties that have been designated in accordance with Sec. 2.9 - Historic Preservation Incentive Zoning of the City of Alpharetta Unified Development Ordinance, the following additional incentives apply:
1.
Building Coverage Exclusion. Designated contributing historic buildings are excluded from building coverage calculations. This exclusions also applies to historic accessory structures such as barns, carriage houses, garages, and similar structures that would otherwise be counted towards in building coverage.
2.
Building Coverage Incentive. The maximum building coverage of a site may be increased an additional 5% for each designated historic building on the site. Historic accessory buildings such as barns, carriage houses, garages, and similar structures are not considered designated historic buildings for the purpose of this increased in lot coverage.
D.
Building Coverage.
1.
The maximum building coverage of a site may not exceed 70%, except as allowed for in Sec. 2.10.2.C. above for sites utilizing Historic Preservation Incentive Zoning.
2.
When a site is subdivided into individual lots, the building coverage on any individual lot may exceed the maximum permitted building coverage, provided that the overall maximum building coverage of the site is not exceeded.
E.
Building Placement.
1.
Front Yard Setbacks along Public Streets.
a.
The minimum required front yard setback along a public street shall be as follows:
i.
If a site includes an existing building to remain, the minimum front yard setback shall be the setback of the existing building.
ii.
If a site includes no existing building to remain, the minimum front yard setback shall be the average front yard of the existing buildings on adjacent developed lots within the same block face. If only one adjacent lot is developed, the minimum front yard setback shall be the front setback of the existing adjacent building.
iii.
In all other situations, the minimum front yard setback shall be established by the applicable zoning district.
b.
The maximum permitted front yard setback along a public street is the largest front setback of any existing building on the block face, except when the minimum setback required by the applicable zoning district is greater.
c.
For the purpose of calculating front yard setbacks, a block face means one side of a public street between two consecutive intersecting public streets. Only the portion of such side that is located in the Heritage Design Area may be included in the calculation.
2.
Site Side Yard Setbacks. The minimum side yard setback on a site may not be less than 5 feet, except when a greater minimum setback is required by the applicable zoning district.
3.
Site Rear Yard Setbacks. The minimum rear yard setback on a site may not be less than 5 feet, except when a greater minimum setback is required by the applicable zoning district.
F.
Bulk and Mass.
1.
Building Height. The maximum building height is 46 feet. Properties that take advantage of the height incentive shall restrict uses to restaurant with no drive-through, office, non-automotive retail and residential with a conditional use.
G.
Parking.
1.
Properties that save a structure on the City's List of Contributing Historic Structures shall be permitted to use the structure for any use permitted within the underlying zoning district and said use shall be exempt from meeting the minimum required parking spaces.
H.
Parking Lots and Driveways.
1.
Parking lots and driveways may be constructed of pervious or impervious paving materials. Alternative materials such as gravel or crushed stone are also allowed when the City Transportation Engineer finds that such material is suitable for the anticipated use and neither impairs the public health, safety, or welfare, nor creates a public nuisance.
(Ord. No. 757, § 1(Exh. A), 5-9-2018)
A.
The requirements of this Article apply to all Downtown Zoning Districts.
B.
The requirements of the Unified Development Code also apply in all Downtown Districts unless expressly stated otherwise in this Article.
3.2.1. Site.
Defined. A site is any lot or group of contiguous lots owned or functionally controlled by the same person or entity, assembled for the purpose of development. Lots within a site may be separated by an existing public right-of-way.
A.
Lot Frontage.
1.
Every lot (except cottage court lots) and every cottage court site must have frontage upon:
a.
An existing public street, or
b.
A new public street or private street built to standards of Section 2.3.3, or
c.
A civic space meeting the standards of Section 3.2.4.B or an existing City of Alpharetta park. No more than 20% of the total lots in a site (except cottage court lots) may front on a civic space or existing City park.
2.
Alleys may not be used to satisfy the lot frontage requirements of Section 3.2.2.A.1 above.
3.
The minimum lot frontage is 20 feet or the minimum lot width identified in district regulations, whichever is greater.
4.
Lots having frontage on a civic space or existing City park must still comply with fire lane access requirements, as applicable.
A.
Defined. The dwelling units per acre of land.
B.
The residential density of a site is expressed in dwelling units per acre of land and is calculated by dividing the total dwelling units on a site by the site's acreage. Residential density includes both a base and maximum density.
C.
The ability to achieve the permitted density may be further restricted by site conditions, district regulations, or conditions or rezoning.
A.
Defined. Open space is the horizontal outdoor area of a site reserved to provide separation, resource protection, scenic enjoyment, recreation, or amenity. It includes two types: civic space and amenity space.
B.
Civic space. Civic space is the portion of open space for public use defined by the combination of certain physical constants including the relationships among their intended use, their size, their landscaping, and their adjacent buildings. Civic spaces are limited to the following types. Each civic space approved must be usable for civic purposes. Above-ground cisterns require architectural and/or landscape screening that compliments the architecture of the building and is of like or similar materials used in the building's construction. The cisterns and other vertical runoff reduction measures and their screening shall require approval by the Community Development Director.
1.
Park. An open space available for structured or unstructured recreation. A park may be independent of surrounding buildings at its edges. Its landscape may consist of paths and trails, meadows and lawns, water bodies, runoff reduction measures such as bioretention areas, swales, cisterns, and woodlands. Recreation fields and courts may also be included. The minimum size for a park is one acre.
2.
Square. An open space available for unstructured recreation and civic purposes. A square is spatially defined by building or streets at its edges. Its landscape must consist of paths and trees, and may also include runoff reduction measures such as bioretention areas and cisterns, lawns and non-asphalt paved surfaces. The minimum size for a square is one-half acre.
3.
Plaza. An open space, available for civic purposes and commercial activities. A plaza must be spatially defined by building or streets at its edges. Its landscape must consist primarily of non-asphalt paved surfaces and trees, and may include runoff reduction measures such as bioretention areas and cisterns. The minimum size for a plaza is one-quarter acre.
4.
Pocket Park. An open space, available for unstructured recreation. A pocket park may be spatially defined by buildings or streets at its edges. Its landscape must consist of lawn and trees, and may include runoff reduction measures such as bioretention areas and cisterns. There is no minimum size for pockets parks.
5.
Playground. An open space designed and equipped for the recreation of children. A playground must be fenced and may include an open shelter. Playgrounds must be interspersed within residential areas, may be placed within a block, and may be included in parks and greens. There is no minimum size for playgrounds. Playgrounds may include runoff reduction measures such as bioretention and underground detention.
C.
Amenity space. Amenity space is the covered or uncovered, but unenclosed, outdoor areas of at least 100 square feet each for use by the occupants, invitees and guests of the development and specifically excluding Civic Spaces and required sidewalks. Amenity spaces may include, but are not limited to:
1.
Rooftop decks;
2.
Balconies;
3.
Patios and porches;
4.
Outdoor dining areas;
5.
Pool areas;
6.
Tennis courts, basketball courts, and similar uses;
7.
Yards, lawns, and gardens;
8.
Hardscape areas improved for pedestrian enjoyment; and
9.
Wooded areas.
10.
Runoff reduction measures such as bioretention areas and cisterns.
Each amenity area approved must function as an amenity area. Above-ground cisterns require architectural and / or landscape screening that compliments the architecture of the building and is of like or similar materials used in the building's construction. The cisterns and other vertical runoff reduction measures and their screening shall require approval by the Community Development Director.
D.
Open space may be privately or publically owned. Private open space is open space that is owned by a corporation, individual, or homeowners association. Public open space is open space owned by a governmental agency.
E.
Wetlands, lakes, ponds, streams, rivers, flood zones, and stream buffers may only be considered open space when located within one of the five types of civic spaces identified in Section 3.2.4.B, unless part of approved stormwater management plan for the site that includes runoff reduction measures.
F.
No required buffer, except for stream buffers, may be used to satisfy open space requirements.
G.
Stormwater management facilities for the site may be used to satisfy open space requirements if they meet this Chapter's definition of open space. Open space credit may be given at the discretion of the Director of Community Development.
H.
No areas used for vehicles, except for incidental service, maintenance, or emergency actions, may be used to satisfy open space requirements.
I.
A site's Open space requirements shall be considered completely satisfied when a development incorporates a historic building that complies with all of the following:
1.
The building is at least 75 years old and is listed on the following table:
2.
_____
3.
The building is deemed fit for human habitation in accordance with Article III of Chapter 5 of The Code of the City of Alpharetta, Georgia; and
4.
A binding legal agreement that established a program for guaranteeing maintenance of said building through a condominium association, a homeowner association, bonding, or other protective maintenance guarantees is signed by all property owners and/or their prospective successors in title and is submitted to the City of Alpharetta.
J.
When a historic building used to satisfy open space requirements in accordance with Section 3.2.4.I. is subsequently completely destroyed, the applicable open space requirements of the zoning district must be satisfied within one year unless a variance is granted by the Board of Appeals.
(Ord. No. 732, §§ 47—55, 2-6-2017; Ord. No. 738, § 4(Exhs. C, D), 5-1-2017; Ord. No. 757, § 1(Exh. A), 5-9-2018; Ord. No. 827, § 1(Exh. B), 6-7-2021)
Building types are allowed by Downtown Zoning District as shown below.
3.4.1. Allowed Use Table.
A.
In order to regulate a variety of similar uses, use categories have been established for principal uses. Use standards for both principal and accessory uses are specified in Section 2.3 and Section 2.7 of the Unified Development Code. Uses not listed may be interpreted by the Director of Community Development. When the Director of Community Development cannot determine placement, an application shall be made to the Board of Appeals for interpretation.
B.
Principal and accessory uses allowed by district are shown in the table below.
A.
Permitted Use (X). Indicates a use is permitted in the respective district. The use is also subject to all other applicable requirements of the Unified Development Code.
B.
Conditional Use (O). Indicates a use may be permitted in the respective district only where approved by the City Council in accordance with Section 4.2 of the Unified Development Code. Conditional uses are subject to all other applicable requirements of the Unified Development Code, including any applicable use standards, except where the use standards are expressly modified by the City Council as part of the conditional use permit approval.
C.
Use Not Permitted. An empty cell indicates that a use is not permitted in the respective district.
(Ord. No. 741, § 4, 6-5-2017; Ord. No. 744, § 2, 7-10-2017; Ord. No. 808, § 4(Exh. D), 9-8-2020; Ord. No. 836, § 1(Exh. C), 10-4-2021; Ord. No. 843, § 4(Exh. D), 4-18-2022)
3.4.3. Specific Use Standards.
The following principal and accessory uses must conform with the indicated use standards.
A.
Dwelling, 'For-Sale' Accessory. Where a Dwelling, 'For-Sale' Accessory is allowed, it is subject to the following:
1.
The dwelling shall be accessory to a permitted commercial use and shall be located above or to the rear of such use to which it is accessory.
2.
The dwelling shall be attached by a common wall with the commercial or office structure to which it is accessory.
3.
The dwelling shall be occupied by a single family, a member of whom is the owner or tenant of the commercial structure to which it is accessory.
4.
The square footage of the dwelling shall not exceed 40% of the combined square footage of the commercial structure and the dwelling.
5.
The dwelling and the commercial structure to which it is accessory shall be in compliance with all applicable provisions of the life safety code, the building code, and other codes of the City.
B.
Live-Work. Where Live-Work is allowed, it is subject to the following:
1.
Live-work is only permitted on the first floor of a dwelling unit.
2.
A minimum of one person must occupy the dwelling containing the live-work use as their primary place of residence.
3.
The live-work use may employ no more than two persons not living on the premises at any one time.
4.
No business storage or warehousing of material, supplies or equipment is permitted outside of the dwelling containing the live-work use.
5.
The nonresidential use of the live-work use is limited to a permitted or conditional use in the zoning district.
6.
No equipment or process may be used in connection with the live-work use that creates noise, vibration, glare, fumes, odors, or electrical interference detectable to the normal senses, off the premises.
7.
No more than 5 customers are permitted on the premises at any one time.
3.5.1. Purpose.
The purpose of this district is to provide for compact development in Alpharetta's core that is compatible with the area's historic character and includes a variety of commercial uses serving the entire city, civic uses, and residential uses.
3.5.2. Building Types Allowed.
The following building types are allowed:
A.
Detached House
B.
Carriage House
C.
Semi-Detached House
D.
Townhouse
E.
Cottage Court
F.
Walk-Up Flat
G.
Stacked Flat
H.
Commercial House
I.
Shopfront
J.
Flex Building
K.
Mixed-Use Building
L.
General Building
M.
Civic Building
3.6.1. Purpose.
The purpose of this district is to provide for a variety of residential housing, commercial, and civic options along major corridors leading to the Downtown Core.
3.6.2. Building Types Allowed.
The following building types are allowed:
A.
Detached House
B.
Carriage House
C.
Semi-Detached House
D.
Townhouse
E.
Cottage Court
F.
Walk-Up Flat
G.
Stacked Flat
H.
Commercial House
I.
Shopfront
J.
Flex Building
K.
Mixed-Use Building
L.
General Building
M.
Civic Building
3.7.1. Purpose.
The purpose of this district is to provide for a variety of residential housing options, civic uses, and limited commercial uses and developments that are compatible with residential surroundings.
3.7.2. Building Types Allowed.
The following building types are allowed:
A.
Detached House
B.
Carriage House
C.
Semi-Detached House
D.
Townhouse
E.
Cottage Court
F.
Walk-Up Flat
G.
Commercial House
H.
Shopfront
I.
Flex Building
J.
Mixed-Use Building
K.
General Building
L.
Civic Building
3.7.6. Commercial Parking Lot Requirements.
A.
Commercial parking lots must provide a minimum 10 feet wide landscape strip between parking bays. Such strip shall be provided in addition to the requirements of Section 2.3.5 of the Unified Development Code.
B.
The required landscape strip must be planted with a minimum of one shade tree for each 30 feet of landscape strip length or portion thereof.
3.8.1. Purpose.
The purpose of this district is to provide for a variety of housing options in a residential setting.
3.8.2. Building Types Allowed.
The following building types are allowed:
A.
Detached House
B.
Carriage House
C.
Semi-Detached House
D.
Townhouse
E.
Cottage Court
F.
Civic Building
(Ord. No. 732, § 59, 2-6-2017; Ord. No. 737, § 5, 5-1-2017; Ord. No. 748, § 4, 9-18-2017)
Live-Work. Nonresidential activity conducted wholly within a residential dwelling that allows employees, customers, clients or patrons to visit.
Stub-out. A shortened thoroughfare which is intended to provide connectivity at some point in the future.
Wall Plate. A horizontal load-bearing member in a wall assembly. The top of the wall plate is the top most structural piece of the wall.
ALPHARETTA DOWNTOWN CODE
Editor's note—Ord. No. 757, § 1(Exh. A), adopted May 9, 2018, changed the title of Art. 4 from "Site Definitions" to read as herein set out.
1.1.1. Title.
This ordinance shall be known as the "Alpharetta Downtown Code" or may be internally citied as "this code."
The intent and purpose of this code is to enable and support the implementation of the following policies:
A.
That the Downtown Alpharetta is the focal point for high-quality, mixed-use development in the City of Alpharetta as established in the Downtown Master Plan and the City of Alpharetta 2030 Comprehensive Plan.
B.
That within Downtown Alpharetta, ordinary activities of daily life should be able to occur within walking or bicycling distance of most dwellings.
C.
That Downtown Alpharetta should serve people of all ages and allow residents to remain in the community as they age.
D.
That interconnected networks of streets should be designed to disperse traffic and reduce the length and number of automobile trips.
E.
That a range of high-quality and aesthetically compatible housing options should be provided to accommodate different needs in the community.
F.
That the quality-of-life in existing neighborhoods should be preserved and protected.
G.
That development patterns should make walking and bicycling safer and more pleasant.
H.
That a range of useable open spaces including parks, squares, playgrounds, and preserved environmentally sensitive areas should be distributed throughout Downtown Alpharetta.
I.
That buildings and landscaping should be coordinated in order to contribute to Downtown Alpharetta's physical design and sense of place.
J.
That development should adequately accommodate automobiles while respecting the pedestrian and the design of public areas.
K.
That public buildings, gathering places, and areas for community events should be provided as locations that reinforce community identity.
L.
That public buildings should be distinctive and appropriate to a role more important than the other buildings that constitute the fabric of the area.
M.
That the harmonious and orderly development and redevelopment of Downtown Alpharetta should be secured through these regulations.
1.2.1. Territorial Application.
This code applies within the study area of the City of Alpharetta Downtown Master Plan, adopted by the City of Alpharetta Mayor and city Council on February 23, 2015, subject to the following:
A.
The study area of the City of Alpharetta Downtown Master Plan shall be shown on the Official Zoning Map and labeled "Downtown Overlay." Heritage Design Areas identified in Sec. 2.10 shall also be shown on the Official Zoning Map and labeled "Heritage Design Area."
B.
Within the Downtown Overlay the requirements of Article 2 apply in addition to the requirements of the zoning district in which a parcel lies.
C.
Within the Downtown Overlay the requirements of Article 3 only apply when a parcel has been rezoned to a Downtown Zoning Code in accordance with the requirements for such found in Section 4.2 of the Unified Development Code.
(Ord. No. 757, § 1, 5-9-2018)
1.2.2. Conformance Requirements.
A.
All buildings, structures or land, in whole or in part, must be used or occupied, in conformance with this code. All buildings or structures, in whole or in part, must be erected, constructed, moved, enlarged or structurally altered in conformance with this code.
B.
Nothing in this code shall require any change in the plans, construction or intended use of a building or structure for which a lawful permit has been issued or a lawful permit application has been accepted before the effective date of this code, provided that the construction under the terms of such permit is diligently followed until its completion.
1.2.3. Conflicting Provisions.
A.
It is not the intent of this code to interfere with or abrogate or annul any easements, covenants or other agreements between parties; provided, however, that where this code imposes a greater restriction upon the use of property or premises or upon the height of buildings, or requires greater space than is imposed or required by other resolutions, rules or regulations, or by easements, covenants or agreements, the provisions of this code shall govern.
B.
Nothing herein shall be construed as repealing or modifying the conditions of operation or conditions of site development accompanying those zoning approvals, variances or use permits issued prior to the existence of this code; however, modification or repeal of these past conditions of approval may be accomplished through a zoning change in accordance [with] Section 4.2 of the Unified Development Code.
1.2.4. Use of Words and Phrases.
Terms used throughout this code may be defined in Article 4 Definitions of Terms. Article 4 contains regulatory language that is integral to this code. Those terms not defined in Article 4 shall be accorded their commonly accepted meanings. In the event of conflicts between these definitions and those of Section 1-4 of the Unified Development Code, those of this code shall take precedence.
1.3.1. Downtown Zoning Districts Established.
A.
The following "Downtown Zoning Districts" are established within the area regulated by this code:
1.
Downtown Core (DT-C)
2.
Downtown Mixed-Use (DT-MU)
3.
Downtown Live-Work (DT-LW)
4.
Downtown Residential (DT-R)
B.
Parcels shall retain their current zoning that existed on the effective date of this ordinance.
1.3.2. Relationship between Land Use Categories and Downtown Zoning Districts.
The land use categories established by the Comprehensive Land Use Plan may be implemented by the establishment of appropriate zoning districts within each category. The Downtown Zoning Districts permitted within each land use category are restricted to the following:
A.
The "Central Business District" land use category permits the "Downtown Core" zoning district.
B.
The "Mixed-Use District" land use [category] permits the "Downtown Mixed-Use" zoning district.
C.
The "Mixed-Use Live/Work District" land use category permits the "Downtown Live-Work" zoning district.
D.
The "Downtown Residential Density" land use category permits the "Downtown Residential" zoning district.
E.
All other land use categories permit the zoning districts identified in the Comprehensive Land Use Plan.
(Ord. No. 808, § 4(Exh. D), 9-8-2020)
Zoning changes to a "Downtown Zoning District" shall only occur in conformance with Section 1.3.2 and in accordance with Section 4.2 of the Unified Development Code.
2.1.1. Applicability.
A.
The requirements of this Article apply to all parcels within the Downtown Overlay unless expressly stated otherwise in this Article.
B.
The requirements of the Unified Development Code also apply in all Downtown Districts unless expressly stated otherwise in this Article.
C.
This Article does not change the permitted use or density of a property within the Downtown Overlay. Land and structures must be used in accordance with the standards of the underlying zoning district.
D.
This Article does change the permitted form and design of a property subject to the Downtown Overlay. When requirements of this Article conflict with any other requirement of the Unified Development Code or the Alpharetta Downtown Design Guidelines, the requirements of this Article shall prevail.
E.
When the word "street" is used in this Article it means both public and private streets unless stated otherwise.
2.2.1. Intent.
A.
The intent of the block and access standards is to provide a well-connected street network. Large blocks with limited connectivity discourage walking, contribute to street congestion, and add driving distance that can negatively impact emergency services. New streets should also be designed to consider the future development identified in the Alpharetta Downtown Master Plan.
B.
The intent of the access standards is to provide safe and convenient vehicular and pedestrian access within developments and between adjacent developments and to lessen traffic congestion and increase connectivity. Pedestrian, bike, and vehicular access should be safe, direct and convenient.
A.
Sites greater than 4 acres in size must incorporate existing or new streets that terminate at other existing or new streets to form an interconnected network with the maximum block perimeter lengths that follow:
B.
In addition to the block standards above, blocks containing exclusively 'For Sale' detached dwellings must be wide enough to provide two tiers of lots, except where fronting on arterial streets prevented by topographical conditions or size of the property, in which case the City Transportation Engineer may require and/or approve a single tier of lots.
C.
Other than stub-out streets, dead-end streets are not allowed unless a variance is granted for topographic hardship.
D.
Block Measurement.
1.
A block is bounded by a public or private right-of-way (not including an alley). All public or private rights-of-way proposed as part of a development must be improved with a street.
2.
Block perimeter is measured along the edge of the property abutting the public or private right-of-way, except for the measurement of dead-end streets, which are measured from intersecting centerlines.
3.
The City Transportation Engineer may modify the block perimeter requirements when steep slopes in excess of 25%, preexisting development, tree protection areas, stream buffers, cemeteries, open space, or easements would make the provision of a complete block infeasible.
4.
Where the block pattern is interrupted by public parkland, including greenways, that is open and accessible to the public, pedestrian access points must be provided with a minimum spacing equal to half of the maximum block perimeter.
E.
No public or private street within the Downtown Overlay, including alleys, may be gated.
A.
General. When land is subdivided or otherwise developed, parcels and buildings must be arranged and designed so as to allow for the opening of future streets and must provide access to those areas not presently served by streets. No development may be designed to completely eliminate street access to abutting parcels without current street access.
B.
Stub-Out Streets.
1.
Stub-Out Required.
a.
Where a development abuts unsubdivided land, stub-out streets within the new development must be installed to the meet the block standards of Section 2.2.2.
b.
The stub-out street right-of-way, pavement, and curbing must extend to the boundary of the abutting parcel to the point where the connection to the anticipated street is expected.
c.
Where a stub-out street is provided, a sign noting the future street extension must be posted at the applicant's expense.
2.
Connecting to an Existing Stub-Out Street. If a stub-out street exists on an abutting parcel, the street system of any new development must connect to the stub-out street to form a through street.
3.
Exception. The City Transportation Engineer may eliminate the requirement for a stub-out street or require pedestrian and bicycle only access when steep slopes in excess of 25%, freeways, waterways, tree conservation areas, stream buffers, cemeteries, open space or easements would make the provision of a stub-out street infeasible.
All lots in districts allowing commercial uses, attached 'For-Sale' dwellings, or 'For-Rent' dwellings, and all lots where the adopted comprehensive plan land use classification would allow for rezoning to such district, that abut another lot in a district or land use classification allowing either commercial uses, attached 'For-Sale' dwellings, or 'For-Rent' dwellings must comply with the following standards.
A.
Internal vehicular circulation areas must be designed and installed to allow for cross-access between abutting lots.
B.
Vehicle cross-access may not be gated.
C.
When an abutting lot is vacant or already developed, a stub for a future cross-access connection must be provided at the point where the connection to the abutting parcel is expected to occur in the future.
D.
If a cross-access driveway stub exists on an abutting parcel, the internal vehicular circulation area must connect to the stub to form a cross-access connection.
E.
When cross-access for vehicles is deemed impractical by the City Transportation Engineer on the basis of topography, the presence of natural features, or vehicular safety factors, the requirement for cross access may be waived. Bicycle and pedestrian connections must be provided between abutting properties when cross-access is waived.
F.
Property owners who establish cross-access easements must:
1.
Allow pedestrian and vehicular access to all properties on the same block face as the property owner establishing the cross-access. Pedestrian and vehicular access is contingent upon the granting of reciprocal vehicular, bicycle, and pedestrian access rights to the granting property;
2.
Record an easement allowing cross-access to and from properties served by the cross-access easement;
3.
Record a joint maintenance agreement requiring each property owner to maintain the vehicular, bicycle, and pedestrian access areas on their lot;
4.
Contain a provision prohibiting the erection of fences, walls and other obstructions that prevent the use of vehicular, bicycle, and pedestrian access ways;
5.
Include a statement that the cross-access agreement is conveyed with the land, is binding on all successors, heirs and assigns and that the easement rights are perpetual; and
6.
The cross access agreement must be signed by all of owners of the granting property.
2.3.1. Intent.
A.
The intent of this Section is to provide a palette of street types and design elements that reflect the character of different areas within the Downtown Overlay as established in the Alpharetta Downtown Master Plan.
B.
The regulations provide adequate accommodations for vehicles, cyclists, and pedestrians.
C.
The street types defined in this Section provide a guide to balancing the needs of all modes of travel. Modifications to these types may be made by the City Transportation Engineer.
D.
The appropriate street type will be selected by the City Transportation Engineer based on the Roadway Plan in the Alpharetta Master Plan and engineering and land use context factors, including anticipated vehicle volumes.
A.
When a development proposes the construction of a new public or private street, the requirements of this Section apply.
B.
When constructing a new street or reconstructing an existing street, sidewalks, bike lanes, curb and gutter or an alternative curb and gutter to accommodate GI/LID, and street trees must be installed and constructed in accordance with this Section and the City of Alpharetta Department of Engineering/Public Works Design Standards.
C.
Use of multi-functional stormwater BMPs is expressly allowed and encouraged in the ROW, including streetscape landscape bioretention areas and stormwater planters, stormwater street trees, curb bulbouts and medians with bioretention, and vegetated swales. Such stormwater BMPs may receive stormwater credit for the site if part of an approved stormwater management plan and with a long-term maintenance agreement.
D.
Traffic calming design elements, such as intersection bulbouts can help moderate vehicle speeds on Downtown Streets; multifunctional bulb-outs that include runoff reduction measures for stormwater management are encouraged. Landscaping and traffic calming techniques that are ideal on Downtown Streets include, but are not limited to, street trees with grated wells, bioretention areas/planters, curb bulbouts with bioretention.
E.
Existing streets may continue serving existing development in their current configuration; however, they must not be extended or substantially rebuilt except in conformance with this Section.
(Ord. No. 732, §§ 37—40, 2-6-2017)
A.
All new or extended public or private streets must meet the following standards unless modified by the City Transportation Engineer for the following public purposes:
1.
To provide on- or off-street bicycle facilities;
2.
To provide wider sidewalks or planters;
3.
To provide a median, left turn lane, or combination therefore;
4.
To provide bulb-outs;
5.
To provide hardscape surface in otherwise landscaped planters in order to provide pedestrian access to adjacent on-street parking;
6.
To increase or decrease the travel lane width; and
7.
To provide traffic calming or pedestrian safety measures.
8.
To provide multi-use vegetated runoff reduction measures in street planter and as street tree areas.
(Ord. No. 732, § 41, 2-6-2017)
B.
Arterial Street Residential.
C.
Arterial Street Commercial/Mixed-Use.
D.
Collector Street Residential.
E.
Collector Street Commercial/Mixed-Use.
F.
Green Street.
G.
Local Street Residential.
H.
Local Street Commercial/Mixed-Use.
I.
Residential Alley.
J.
Commercial/Mixed-Use Alley.
K.
Representative Alternative Streetscape Standard along an Existing Street.
1.
Purpose. Sec. 2.3.4.C.6 allows alternative streetscape standards to be approved by City Transportation Engineer under certain conditions. The purpose of this section is to illustrate one option for how this street type could be arranged.
(Ord. No. 757, § 1(Exh. A), 5-9-2018)
2.3.4. Existing Streets, Streetscapes.
A.
Applicability. A building or site may be renovated or repaired without meeting the requirements of this Section, provided any increase in gross floor area or improved site area does not exceed 25%.
B.
Exceptions. This does not apply as follows:
1.
On a parcel zoned R-12 or R-15 when such parcel is located within a recorded subdivision that existed on the date of adoption of this ordinance and when no sidewalks currently exist adjacent to the parcel.
2.
On a parcel for which a Land Disturbance Permit or Building Permit is issued but where the Director of Community Development determines that the permit is for an accessory use or structure to the principal use or structure or for minor repairs or additions to the principal building or structure in existence.
C.
Streetscapes Required.
1.
Existing streets that do not meet the parallel parking, planter, and sidewalk standards of the Downtown Alpharetta Streetscape Table must be brought into compliance with said standards along the site's frontage prior to the issuance of Certificate of Occupancy, except as indicated in 5 below.
2.
On existing streets where there is insufficient right-of-way for the required streetscape and parking improvements, the right-of-way needed for such improvements may be expanded by mutual agreement between the property owner and the entity holding the right-of-way, or a public access easement may be provided to the City to meet the required improvements.
3.
Where an easement is provided to the City and a parcel is zoned a Downtown Zoning District, the back of the minimum required sidewalk (adjacent to the lot) may be considered the lot line for the purpose of establishing yards, may not be included in lot coverage calculations, and may not be counted in minimum lot size requirements for new lots.
Downtown Alpharetta Streetscape Table
Note 1: Along at least one side of Thompson Street a 12-foot wide multi-use trail must be provided in lieu of the required sidewalk in accordance with the Downtown Master Plan. Such trail may be on the north or south side of the street, as determined by the City Transportation Engineer. The planter width may also be increased to allow the trail to run through existing or new open spaces.
4.
Where a publically funded streetscape project using alternative planter standards was installed adjacent to a parcel after January 1, 2005, the planter standards of Downtown Alpharetta Streetscape Table do not apply.
5.
The City encourages the use of multi-functional runoff reduction measures in the streetscape, including bioretention areas, stormwater tree box, and planter box. The dimensional standards for planting area, tree spacing, planting type and utility placement may be varied to accommodate runoff reduction measures.
6.
Alternative streetscape standards along an existing local street may be approved by City Transportation Engineer when all of the following conditions are met:
a.
The site has less than 100 feet of frontage along an existing local street;
b.
The site is along a block that is transitioning from for-sale detached dwellings into more intense uses;
c.
The site is exclusively used for detached houses, cottage courts, semi-detached houses, or townhouses; and
d.
Compliance with this section would result in a streetscape that extends 4 feet or greater beyond the existing right-of-way.
e.
An example of one possible alternative streetscape standard is shown in Sec. 2.3.3.K.
(Ord. No. 732, § 42, 2-6-2017; Ord. No. 757, § 1(Exh. A), 5-9-2018)
A.
Multi-use trails shall have an average width of 12 feet, but their width may be periodically reduced to 8 feet where topography, wetlands, stream buffers, existing buildings, existing trees, or other existing conditions render this requirement infeasible. The maximum length of this reduced width is 400 feet.
B.
A multi-use trail shall be required instead of a sidewalk along any new or existing street when the location is identified for a multi-use trail in the Downtown Master Plan or other plan that has been adopted by the City of Alpharetta.
C.
In approving a multi-use trail in lieu of a sidewalk, the City Transportation Engineer, upon application, shall reduce the required planter width to a minimum width of 5 feet if the proposed reduction is supported by the public health, safety and general welfare.
D.
Buildings shall maintain a minimum setback of twenty-feet (20') from a multi-use trail.
(Ord. No. 864, § 7(Exh. G), 10-16-2023)
2.3.6. Improvements along State Highways.
A.
For any development that abuts a State highway or other right-of-way controlled by the State of Georgia, improvements to the roadway and the location and design of any street or driveway providing access from the State highway must comply with the standards and requirements of the Georgia Department of Transportation.
B.
An approved permit for proposed access or improvements is required by Georgia Department of Transportation and must be incorporated into the construction drawings for the project prior to the issuance of a Land Disturbance Permit.
A.
Defined. A zone adjacent to the curb intended for planting street trees and the placement of street furniture including light poles, litter receptacles and similar items.
B.
Street trees shall be planted in the planter as follows:
1.
Where no overhead utilities exist, shade trees must be planted a maximum of 40 feet on center in the planter. Newly planted trees shall be a minimum of 3½ inches in caliper, and shall be limbed up to a minimum of 7 feet.
2.
Where overhead utilities exist, one understory tree must planted a maximum of 25 feet on center in the planter, subject to approval of the overhead utility provider and the City Arborist.
3.
Trees shall have a minimum 6 feet by 10 feet pervious landscape planting area. Tree grates are not allowed unless the City Arborist determines that they will not negatively impact tree health.
2.4.1. Vehicle Parking.
A.
Every use must provide and maintain vehicular parking in accordance with the Vehicular Parking Requirements Table.
B.
Vehicular Parking Requirements Table.
C.
Parking in the following locations may be used to satisfy the minimum requirements of the Vehicular Parking Requirements Table:
1.
Off-street parking located on the same site or lot as the use it serves;
2.
On-street parking located adjacent to and on the same side of the street as the site or lot containing the use it serves; and
D.
When a use provides more than 120% of the minimum number of spaces required by the Vehicular Parking Requirements Table, any additional spaces in a surface parking lot must be constructed of pervious paving materials. For the purpose of conforming to this requirement, any on-street spaces or off-street spaces in parking structures must be counted towards satisfying the minimum requirement.
E.
Parking In-Lieu Fees.
1.
The city council may authorize vehicular parking requirements to be satisfied through payment of parking in-lieu fees according to the following fee schedule:
Parking In-Lieu Fee Schedule
2.
Applications to use parking in-lieu fees must be made to the city council, which will then hold a public hearing to approve or deny the application. The city council must consider the following in reviewing an application for parking in-lieu:
a.
The availability of parking in the Downtown Overlay:
b.
The availability of alternative transportation in the Downtown Overlay;
c.
The impact on the public health, safety, and general welfare; and
d.
Other considerations deemed material to the application by city council.
3.
Following approval of a parking in-lieu fee application, the fee must be paid in a lump sum either:
a.
Prior to the issuance of a building permit; or
b.
Prior to the issuance of a business license for the use for which the parking is required, if no building permit is required.
4.
When parking in-lieu fees are utilized, the following apply if the use is changed or discontinued:
a.
If a use is enlarged or replaced by a use that requires more parking, the additional parking requirement may be met by paying additional parking in-lieu fees.
b.
If a use is reduced in area, or wholly or partially becomes vacant, or is replaced by a use that requires less parking, no additional parking in-lieu fees are required.
c.
If a use is destroyed, the property owner may count its parking in-lieu fee spaces towards meeting the requirement of new uses built on-site, subject to "a" and "b" above.
d.
A change of ownership or the dividing or merging of lots will not affect parking in-lieu fees or any determination that parking requirements have been met according to fees paid for a particular use, except when the change of ownership results in one of the conditions identified in "a" through "c" above.
F.
On-Site Parking Special Exceptions.
1.
The following applies in place of Section 4.5.5 of the Unified Development Code when some or all of the required on-site parking is not provided and said requirement is not otherwise fully or partially satisfied through the payment of parking in-lieu fees.
2.
Parking special exceptions shall be heard by the Planning Commission and decided by the City Council utilizing the same process required for conditional use applications under Section 4.2. of the Unified Development Code, except the conditional use standards of Section 4.2.3.C. shall not apply.
3.
Parking special exceptions may be granted when the character of the use is such that the full provisions of on-site parking facilities is unnecessary, or when a site is unable to accommodate the required number of parking spaces due to the site's size, shape, topography, existing buildings, existing trees, other natural features, or required buffers.
4.
The City Council may impose conditions of approval on the special exception in order to protect the public health, safety, and general welfare.
5.
In no case shall a special exception be granted from the conditions of approval imposed on a property through a zoning change granted by the City Council.
(Ord. No. 732, § 43, 2-6-2017; Ord. No. 736, § 3, 3-20-2017; Ord. No. 753, § 1(Exh. A), 3-19-2018; Ord. No. 859, § 1(Exh. A), 6-26-2023)
A.
Facilities that provide or require 25 or more vehicle parking spaces must provide a minimum of 1 bicycle parking space, plus 1 space for each additional 25 provided vehicle parking spaces, provided that no site may have fewer than 3 spaces nor be required to exceed 30 bicycle spaces.
B.
Bicycle parking facilities must comply with the following provisions.
1.
Each required bicycle parking space must be at least 2 feet by 6 feet. Where a bike can be locked on both sides of a bicycle rack without conflict, each side can be counted as a required space.
2.
Bicycle racks must be securely anchored, be easily usable with both U-locks and cable locks, and support a bicycle at 2 points of contact to prevent damage to the bicycle wheels and frame.
3.
Bicycle parking must be provided in a well-lit area.
4.
Spacing of the bicycle racks must provide clear and maneuverable access.
5.
Bicycle parking may be placed within the public right-of-way, provided the encroachment is approved by the City Transportation Engineer.
6.
Bicycle parking spaces must be as close as or closer than the nearest vehicle parking space (as measured along a pedestrian walkway from the door of the use the parking serves).
A.
Applicability. The following applies to driveways, including those serving alleys, but not to new streets in conformance with Section 2.3.3.
B.
Width. Unless approved by the City Transportation Engineer or required by the Georgia Department of Transportation along a State highway, the maximum width of curb cuts, not including flares or returns at the throat of the facility, for entrances, exits, service drives and similar facilities shall be 24 feet for two-way entrances and 12 feet for one-way entrances.
C.
Number. The maximum number of driveways allowed on a site shall not exceed an amount equal to one driveway for every 300 feet of total street frontage or fraction thereof. All parcels are permitted at least one driveway.
D.
Location. Driveways may not be located on an arterial street when access is available from a collector or local street.
2.4.4. Design of Parking Structures.
A.
When a parking structure fronts an arterial or collector street its ground story must have active uses (such as, but not limited to, residential, commercial, office or civic space) located between the parking structure and the closest adjacent street (not including an alley). Such active use shall have a minimum depth of 20 feet.
B.
Where upper stories of structured parking are adjacent to or visible from any street, they must be screened so that cars and ramps are not clearly visible from ground level view from the adjacent parcel or the adjacent street (not including an alley).
C.
Structured parking facades adjacent to or visible from any street must have the appearance of a horizontal storied building.
A.
On-site loading space is not required.
B.
Loading areas must be located to the rear of buildings. Loading areas must not be placed between a building and the closest adjacent street.
C.
Screening. If a loading area is provided, it must meet the following.
1.
Where a loading dock designed for tractor-trailers is placed between a shared lot line or building and the closest adjacent street (not including an alley), the entire length of the loading area must be screened.
2.
Screening must consist of either:
a.
An 8-foot high wall compatible with the principal building in terms of texture, quality, material and color; or
b.
Evergreen plant material that can be expected to reach a height of 8 feet with a spread of 4 feet within 3 years of planting.
2.4.6. Vehicle Access and Parking Locations.
A.
No driveway or off-street parking lots may be located between a building and the closest street unless an intervening approved building type exists.
B.
Off-street parking for the following must be accessed from alleys:
1.
Townhouses on lots of any width.
2.
All other building types on lots less than 50 feet in width.
C.
Where a garage faces a street the garage must be recessed a minimum distance of 20 feet behind the front building façade.
D.
Each 'For Sale' dwelling unit shall have a minimum 18' long and 10' wide paved driveway, as measured from the garage to the back of sidewalk, or back of curb where a sidewalk is not provided.
E.
Enclosed tandem parking spaces shall only count for one required parking space, since only one space is fully accessible.
(Ord. No. 772, § 7, 2-4-2019)
_____
2.5.1. Applicability.
A.
New Construction. Any new building or site improvement must comply with the landscaping and screening requirements of this Section.
B.
Maintenance and Repair. An existing building or site may be repaired, maintained or modernized without providing additional landscaping or screening, provided there is no increase in gross floor area or improved site area.
C.
Additions.
1.
When an existing building, use or site is increased in gross floor area or improved site area by up to 25% cumulatively, landscaping and screening is required for the additional floor or site area only.
2.
When an existing building, use or site is increased in gross floor area or improved site area by more than 25% cumulatively, both the existing building, use or site and the additional floor or site area must conform to the landscaping and screening requirements of this Section.
D.
Change in Use. A change in use does not trigger the application of these requirements except when there is a specific use standard requiring landscaping or screening for the new use.
A.
Yards between a parking lot and a street must comply with Section 2.5.3.
B.
Yards greater than 5 feet in depth and located between a building and the closest adjacent sidewalk along a street must be landscaped with grass, trees, shrubs, hedges and other landscaping materials for their entire width, with the exception of areas used for:
1.
Front porches and stoops;
2.
Outdoor dining or display;
3.
Pedestrian walkways used to access a street-facing pedestrian entrance;
4.
Driveways used to access off-street parking; and
5.
Amenity space, where required by Article 3.
C.
Yards greater than 10 feet in depth must be planted with one tree for each 30 feet of street frontage or portion thereof.
D.
Vegetated runoff reduction measures shall be allowed in the designated yards, if properly designed to provide stormwater management and screening functions.
(Ord. No. 732, § 43, 2-6-2017)
2.5.3. Parking Lot Landscape Strips.
A.
Applicability. All surface parking areas (of any size) abutting a street (not including an alley) must be screened using one of the following options.
B.
Landscape Strip with Shrubs. A minimum 10 feet wide landscape strip planted with a minimum of 10 shrubs per 35 linear feet of street frontage, excluding driveway openings. Shrubs shall be provided to screen paved areas and parking lots from the right-of-way. Shrubs shall be at least 2 feet tall at time of planting. They must be planted 2 rows deep, and provide a screen within 3 years of planting.
C.
Landscape Strip with Wall.
1.
A 2.5 feet high wall in a minimum 4-foot planting strip.
2.
Walls must be close to the parking lot in order to provide a minimum 2-foot landscaped area facing the street.
3.
Walls must be closed and be constructed of one or a combination of the following: decorative blocks; brick; stone; cast-stone; split-faced block; or stucco over standard concrete masonry blocks.
D.
Landscape Strip with Berm.
1.
An earth berm a minimum of 2.5 feet higher than the finished elevation of the parking area, planted with 5 shrubs for every 35 linear feet of street frontage, excluding driveway openings.
2.
The berm must contain a rounded crown suitable for planting, and a stabilized side slope of no greater than 3:1.
E.
Landscape Strip with Grade Change. A 6-foot landscaped strip with a minimum 3-foot grade drop from the street to the parking area, planted with a minimum of 5 shrubs for every 35 linear feet of street frontage, excluding driveway openings.
F.
Location. A required landscape strip must be located at the outer perimeter of the parking area and must be provided along the entire parking area abutting the street, excluding breaks for pedestrians, bicycles and driveways.
G.
Plant Material. Required shrubs must be a minimum of 2.5 feet in height at time of planting. 70% of the required amount of shrubs must be evergreen.
A.
Service Areas.
1.
Trash and recycling collection and other similar service areas must be located to the side or rear of buildings and may not between a building and the street.
2.
Service areas must be screened on 3 sides by a wall a minimum 6 feet in height and on the 4th side by a solid gate at a minimum of 6 feet in height.
3.
The wall must be opaque and be constructed of one or a combination of the following: decorative blocks; brick; stone; cast-stone; split-faced block; or stucco over standard concrete masonry blocks.
4.
The gate must be self-locking and maintained in good working order.
B.
Roof-Mounted Equipment.
1.
Roof-mounted equipment must be set back at least 10 feet from the edge of the roof and screened from ground level view from abutting parcel or abutting street (not including an alley).
2.
New buildings must provide a parapet wall or other architectural element that is compatible with the principal building in terms of texture, quality, material, and color that fully screens roof-mounted equipment from ground level view.
3.
For buildings with no or low parapet walls, roof mounted equipment must be screened on all sides by an opaque screen compatible with the principal building in terms of texture, quality, material, and color.
C.
Wall-Mounted Equipment.
1.
Wall-mounted equipment located on any surface that is visible from a street (not including an alley) must be fully screened by landscaping or an opaque wall or fence that is compatible with the principal building in terms of texture, quality, material, and color.
2.
Screening must be of a height equal to or greater than the height of the mechanical equipment being screened.
D.
Ground-Mounted Equipment
1.
Ground-mounted mechanical equipment that is visible from a street (not including an alley) must be fully screened by landscaping or an opaque wall or fence that is compatible with the principal building in terms of texture, quality, material and color.
2.
Screening must be of a height equal to or greater than the height of the mechanical equipment being screened.
2.5.5. Design and Installation.
A.
Plant Material.
1.
Plant materials must be hardy to zone 7b in accordance with the U.S. Department of Agriculture's Plant Hardiness Zone Map.
2.
Plant materials must be able to survive on natural rainfall once established with no loss of health.
3.
Tree height is measured from the top of the root ball to the tip of the main stem.
4.
No artificial plants, trees, or other vegetation may be installed as required landscaping and screening.
2.5.6. Maintenance of Landscaping.
A.
Responsibility. The property owner is responsible for maintaining all required landscaping and screening in good health and condition. Any dead, unhealthy, damaged or missing landscaping and screening must be replaced with landscaping and screening that conforms to this Section within 90 days (or within 180 days where weather concerns would jeopardize the health of plant materials) as approved by the City Arborist.
B.
Soil Erosion.
1.
All planting areas must be stabilized from soil erosion immediately upon planting and must be maintained for the duration of the use.
2.
Grass areas must be sodded prior to the issuance of a Certificate of Occupancy. If grass seed must be used, it must be a variety that may be reasonably expected to produce full coverage of the area.
C.
Pruning and Trimming.
1.
All required landscaping must be allowed to reach its required size and must be maintained at no less than required size.
2.
To prevent long-term harm to the health of required landscaping, all pruning of shrubs and trees must be done in accordance with the International Society of Arboriculture Standards entitled "ANSI A300 Standards."
3.
"Topping," defined as removal of more than one-third of the leaves and branches of a tree, as measured from the lowest branch on the trunk of the tree to the top of the tree, is prohibited, except where necessary to maintain public overhead utilities.
_____
2.6.1. Applicability.
A.
Neighborhood compatibility measures are required when a lot zoned or used for a rental dwelling, office, institutional, commercial, industrial uses, or occupied by a non 'For-Sale' residential use adjoins a protected district.
B.
Protected district as used in this Section means any property zoned for or used by 'For-Sale' residential purposes. Where commercial or industrial districts or developments abut R-10M zoning districts, the R-10M zoning district is considered a protected district and neighborhood compatibility measures also apply.
A.
A 50 feet wide undisturbed buffer is required as shown in the Downtown Buffer Table.
B.
Except as otherwise provided, herein, the buffer shall be preserved in its natural undisturbed state, except that sparsely planted buffers shall be enhanced with additional plant material. Enhancement plants must provide an opaque screen within two years of planting and must meet the following standards:
1.
Plants must be a minimum of 5 feet in height at time of installation;
2.
At least 75% of the total number of plants installed must be evergreen species; and
3.
Plants will be planted and spaced as shown in the Downtown Buffer Table.
C.
Buffers may not contain any surface parking or storm water detention basins, or any structures except that the Director of Community Development may approve underground facilities within the buffer or the crossing of the buffer for the purpose of extending utilities. The Community Development Director may approve vegetated runoff reduction measures within the buffer. The planting requirements in A. and B. above may be varied to accommodate vegetated runoff reduction measures as part of an approved stormwater management plan, if properly designed to provide stormwater management and screening functions.
D.
Stream buffers must be replanted where disturbed for approved access and utility crossings. Replacement plants must be approved by the City Arborist.
E.
All buffer plantings are subject to the approval of the Director of Community Development.
(Ord. No. 732, §§ 44, 45, 2-6-2017)
_____
All building setbacks are measured from the inside edge of the required buffer.
2.6.4. Transitional Height Plane.
A.
A building must not extend into a 45-degree angular plane projecting over the subject property measured from a height of 35 feet at the side interior or rear setback line.
B.
The transitional height plane ends at any public street (not including an alley) or 60 feet from the protected district lot line, whichever is less.
The following rules apply to all buildings in the Downtown Overlay.
2.7.1. Descriptions.
Within the Downtown Overlay building types are used to regulate the design of buildings. Each building type is described below. A building's building type is determined by the Director of Community Development. Within Downtown Zoning District, building types are subject to the additional use requirements of the applicable zoning district. All graphic depictions of building types are for illustrative purposes only. Note that these building types are for zoning purposes only, and not linked to the Building Code. Freestanding parking structures are not considered to be a building type.
A.
Detached House. A building type that accommodates one dwelling unit on an individual lot with yards on all sides. Not intended for nonresidential uses.
B.
Carriage House. A small self-contained accessory dwelling unit located on the same lot as a detached house, semi-detached house, or townhouse but physically separated, for use as a complete, independent living facility, with provisions for cooking, sanitation and sleeping.
C.
Cottage Court. A building type designed to accommodate 5 to 10 detached dwelling units organized around a shared internal courtyard. Units cannot be vertically mixed.
D.
Semi-Detached House. A building type that accommodates two dwelling units arranged either horizontally or vertically. Not intended for nonresidential uses.
E.
Townhouse. A building type that accommodates 3 or more dwelling units where each unit is separated by a common side wall. Units cannot be vertically mixed.
F.
Walk-up Flat. A building type that accommodates 3 to 8 dwelling units vertically and horizontally integrated.
G.
Stacked Flat. A building type that accommodates 9 or more dwelling units vertically and horizontally integrated.
H.
Commercial House. A building type that accommodates nonresidential uses in a building type that resembles a detached house. Not intended for residential uses.
I.
Shopfront. A single-story building type that typically accommodates single-use retail or commercial activity.
J.
Mixed Use Building. A multi-story building type that typically accommodates ground story retail, office, or commercial uses with upper-story residential or office uses. Not for ground story street-facing residential uses along arterial or collector streets.
K.
General Building. A multi-story building type that typically accommodates nonresidential uses such as industrial, hotel, or office uses on all stories.
L.
Civic Building. A building type that accommodates civic uses. Not intended for commercial, retail, office, or residential uses.
2.7.2. Rules Specific to Building Types.
A.
Detached House. A building type that accommodates one dwelling unit on an individual lot with yards on all sides. Not intended for nonresidential uses.
B.
Carriage House. A small self-contained accessory dwelling unit located on the same lot as a detached house, semi-detached house, or townhouse but physically separated, for use as a complete, independent living facility, with provisions for cooking, sanitation and sleeping.
C.
Cottage Court. A building type designed to accommodate 5 to 10 detached dwelling units organized around a shared internal courtyard. Units cannot be vertically mixed.
D.
Semi-Detached House. A building type that accommodates two dwelling units arranged either horizontally or vertically. Not intended for nonresidential uses.
E.
Townhouse. A building type that accommodates 3 or more dwelling units where each unit is separated by a common side wall. Units cannot be vertically mixed. Not intended for nonresidential uses.
F.
Walk-up Flat. A building type that accommodates 3 to 8 dwelling units vertically and horizontally integrated.
G.
Stacked Flat. A building type that accommodates 9 or more dwelling units vertically and horizontally integrated. Intended for primarily residential uses, but may include limited ground story.
H.
Commercial House. A building type that accommodates nonresidential uses in a building type that resembles a detached house. Not intended for residential uses.
I.
Shopfront. A single-story building type that typically accommodates single-use retail or commercial activity.
J.
Mixed Use Building. A multi-story building type that typically accommodates ground story retail, office or commercial uses with upper-story residential or office uses. Not intended for ground story, street-facing residential uses along arterial or collector streets.
K.
General Building. A multi-story building type that typically accommodates nonresidential uses such as industrial, hotel, or office uses on all stories.
L.
Civic Building. A building type that accommodates civic uses. Not intended for commercial, retail, office, or residential uses.
2.8.1. Applicable.
This Section applies to the Building Types identified in Section 2.7.
A.
Fenestration is the minimum percentage of window and door glass that must cover a facade.
B.
Glass used to satisfy fenestration requirements must be unpainted, must have a transparency (visible light transmission) higher than 70%, and must have an external reflectance of less than 15%. Transparency and external light reflectance must be established using the manufacturer's specifications.
C.
Fenestration is measured from the top of the finished floor to the top of the finished floor above.
D.
When there is no floor above, fenestration is measured from the top of the finished floor to the top of the wall plate.
A.
A pedestrian entrance and walkway providing both ingress and egress, operable to residents at all times and operable to customers, visitors, and employees during business hours, is required to meet the street-facing pedestrian entrance requirements. Additional entrances off another street, pedestrian area or internal parking area are permitted, but must have the same or shorter hours of operability as the street-facing entrance.
B.
An angled pedestrian entrance may be provided at either corner of a building along the street to meet the street-facing pedestrian entrance requirements.
C.
Where a lot has frontage on a civic space instead of a street, these requirement apply to and from the civic space.
A.
Intent. The following standards are intended to ensure that certain building elements that when added to a street-facing facade are of sufficient size to be both usable and functional and be architecturally compatible with the building they are attached to.
B.
Front Porch. A raised structure attached to a building, forming a covered pedestrian entrance to a doorway.
1.
A front porch must be at least 6 feet deep (not including the steps).
2.
A front porch must be contiguous, with a width not less than 33% of the building facade from which it projects.
3.
A front porch must be roofed and may be screened, but cannot be fully enclosed.
4.
A front porch may extend up to 9 feet, including the steps, into a required front setback, provided that such extension is at least 2 feet from the vertical plane of any lot line.
5.
A front porch must not encroach into the public right-of-way or required sidewalk.
6.
Steps leading to front porches must have enclosed risers.
7.
Front porch columns must be a minimum width of 8 inches.
C.
Stoop. A small raised platform that serves as a pedestrian entrance to a building.
1.
A stoop must be no more than 6 feet deep (not including the steps).
2.
A stoop may be covered but cannot be fully enclosed.
3.
A stoop may extend up to 6 feet, including the steps, into a required setback, provided that such extension is at least 2 feet from the vertical plane of any lot line.
4.
A stoop must not encroach into the public right-of-way or required sidewalk.
5.
Steps leading to stoops must have enclosed risers.
6.
Stoop columns, where provided, must be a minimum width of 8 inches.
D.
Balcony. A platform projecting from the wall of an upper-story of a building with a railing along its outer edge, often with access from a door or window.
1.
A balcony must be at least 4 feet deep and may extend up to 6 feet into a required setback, provided that such extension is at least 2 feet from the vertical plane of any lot line.
2.
A balcony must have a clear height above the sidewalk of at least 10 feet.
3.
A balcony may be covered and screened, but cannot be fully enclosed.
4.
A balcony may encroach up to 6 feet into the public right-of-way or required sidewalk but must be at least 2 feet inside the curb line or edge of pavement, whichever is greater.
E.
Awning/Canopy. A wall-mounted, cantilevered structure providing shade and cover from the weather for a sidewalk.
1.
An awning must be a minimum of 10 feet clear height above the sidewalk and must have a minimum depth of 6 feet.
2.
An awning may extend into a required setback.
3.
An awning may encroach up to 9 feet into the public right-of-way or required sidewalk but must be at least 2 feet inside the curb line or edge of pavement, whichever is greater.
4.
Awning must be made of canvas and may not be reflective or shiny.
5.
Awnings must have open ends called "shed awnings" to allow views into buildings.
6.
Awnings may not be internally lit.
7.
Awnings may not be narrower than nor two feet wider than the door or window opening that they serve. Where multiple doors and windows are less than two feet apart, multiple awnings may be combined into a single awning.
F.
Gallery. A covered passage extending along the outside wall of a building supported by arches or columns that is open on 3 sides.
1.
A gallery must have a clear depth from the support columns to the building's facade of at least 8 feet and a clear height above the sidewalk of at least 10 feet.
2.
A gallery must be contiguous and extend over at least 75% of the width of the building facade from which it projects.
3.
A gallery may extend into a required setback.
4.
A gallery may encroach up [to] 9 feet into the public right-of-way or required sidewalk but must be at least 2 feet inside the curb line or edge of pavement, whichever is greater.
2.8.5. General Architectural Standards.
A.
Applicability.
1.
The following applies to all buildings, except as specifically stated otherwise.
2.
Detached houses, carriages houses, cottage courts, semi-detached houses, townhouses, walk-up flats, and stacked flats must comply with either the following or Section 2.8.6, at the discretion of the applicant.
3.
Commercial houses must comply with Section 2.9.6 [2.8.6].
B.
Building Materials.
1.
Exterior finish materials on walls visible from a street or civic space must be limited to brick, manufactured stone, architectural block, natural stone, wood siding, cement-based siding, cement-based panels, and/or hard coat stucco.
2.
Hard coat stucco, when used as an exterior wall finish material on any individual building, is subject to the following additional standards:
a.
Hard coat stucco may not exceed 30% of the total wall area (excluding foundations) visible from a street or civic space. For the purpose of calculating conformance with this requirement, windows and doors are not included in the total wall area.
b.
The maximum wall length (excluding foundations) visible from a street or civic space that is finished in any continuous or discontinuous hard coat stucco is 60 feet. Authorized wall lengths finished in hard coat stucco must be separated by a minimum wall length of 60 feet that contains no hard coat stucco.
3.
Exterior finish materials must be combined only horizontally, with the visually heavier below the lighter as shown in the General Visual Weight Table. This does not apply to architectural details such as cornices, window sills, and beltlines.
4.
No more than three different exterior finish materials, textures, colors, or combinations thereof may be used on a single building, excluding materials used on windows, doors, front porches, balconies, foundations, awnings, or architectural details.
5.
Foundations must be constructed as a distinct building element that is finished in a different material or color than the exterior wall. Exposed above-ground foundations must be coated or faced in cement, hard coat stucco, brick, manufactured stone, or natural stone to contrast with façade materials.
C.
Building Facade.
1.
The following applies to all street-facing facades.
2.
Where used, shutters must match one half the width and shape of the window opening to which they are adjacent.
3.
Facades must provide visual divisions between the ground story and second story through architectural means such as courses, awnings, or a change in materials.
4.
Facades must delineate all stories above the ground story with windows, belt courses, balconies, cornice lines or similar architectural detailing.
5.
Windows above the ground story must be equally sized, vertically oriented, equally spaced and arranged in a grid pattern.
6.
Windows must be recessed a minimum of 3 inches and a maximum of 8 inches from the adjacent façade.
D.
Building Massing.
1.
Facades over 50 feet in length must incorporate wall projections or recesses a minimum of 12 inches in depth. The combined length of said recesses and projections must constitute at least 20% of the total facade length.
2.
Variation in the roofline of buildings and offsets in pitched roofs and gables are required. Parapets in individual building facades exceeding 100 continuous linear feet must be varied in height and projection and must use decorative elements such as crown moldings, dentals, brick soldier courses, or similar details.
3.
The roofs of buildings may include cisterns and greenroofs if part of an approved stormwater management plan for the site and if designed in accordance with the GA Stormwater Management Design Manual (latest version). Above-ground cisterns require architectural and/or landscape screening that compliments the architecture of the building and is of like or similar materials used in the building's construction. The cisterns and other vertical runoff reduction measures and their screening shall require approval by the Community Development Director.
(Ord. No. 732, § 46, 2-6-2017)
2.8.6. Small Residential Building Standards.
A.
Applicability. The following applies to detached houses, carriages houses, cottage courts, semi-detached houses, townhouses, walk-up flats, stacked flats, and commercial houses.
B.
Building Materials.
1.
The exterior finish material on all walls is limited to brick, manufactured stone, natural stone, wood siding, cement-based siding and/or hard coat stucco.
2.
Exterior finish materials must be combined only horizontally, with the visually heavier below the lighter as shown in the Small Residential Building Visual Weight Table. This does not apply to architectural details such as cornices, window sills, and beltlines.
3.
No more than three different exterior finish materials, textures, colors, or combinations thereof may be used on a single building, excluding materials used on windows, doors, porches, balconies, foundations, or architectural details.
4.
Foundations must be constructed as a distinct building element that is finished in a different material or color than the exterior wall. Exposed above-ground foundations must be coated or faced in cement, hard coat stucco, brick, manufactured stone, or natural stone to contrast with façade materials.
C.
Building Facades.
1.
The following apply to all street-facing facades.
2.
Windows and Doors
a.
Where used, shutters must match one half the width and shape of the window opening to which they are adjacent.
b.
Doors and windows that operate as sliders are prohibited.
c.
All windows must be vertically shaped with a height greater than width, except for windows that are part of a door or otherwise appropriate for a required architectural style. The top of said windows must generally be in alignment with the top of the adjacent door frame.
d.
Windows must have true or simulated divided lights or be one-over-one lights.
e.
Windows must include sills of wood, masonry, stone, cast stone, or terra cotta.
f.
Window frames must be recessed a minimum of 1.5 inches from the exterior façade.
3.
A stoop or front porch is required.
4.
Awnings are not allowed.
D.
Building Massing.
1.
Pitched roofs, if provided, must be symmetrically sloped no less than 5:12, except that roofs for front porches and attached sheds may be no less than 2:12.
2.
Flat roofs must be enclosed by parapets a minimum of 42 inches high, or as required to conceal mechanical equipment by Section 2.5.4.
3.
All roofs must have a minimum 25-year roof life and no visible roll roofing.
4.
Chimneys, where provided, must extend to the ground and must be faced in brick or stacked stone.
2.8.7. Architectural Style Requirements.
A.
Applicability.
1.
This section only applies to detached houses, cottage courts, and carriages houses that are accessory to a detached house or cottage court. All other building types must comply with the requirements and procedures found in the Downtown Alpharetta Design Guidelines amendment to the Alpharetta Design Review Ordinance and Design Guidelines.
2.
This section is further limited to not apply to parcels zoned R-12 or R-15 when such parcels are located within a recorded subdivision that existed on the date of adoption of this ordinance.
3.
This section is further limited to only apply to new construction, modification, addition, alteration, moving, destruction or demolition which would affect the exterior appearance of any structure, building, land, site or other object, as follows:
a.
The demolition of any building, structure or object.
b.
The moving or relocation of any building, structure or object.
c.
Except housecleaning, any material work on the exterior appearance of existing buildings by additions, reconstruction, rehabilitation, alteration or any maintenance (including exterior color), or any exterior material changes.
d.
Any new construction of a principal building or accessory building or structure subject to view from a street or public way.
B.
Administration.
1.
Conformance with this section is determined by the Director of Community Development. The Director of Community Development may grant relief from one or more requirement when:
a.
The requirement is unique to this section and is not otherwise required by the Unified Development Ordinance, another section of the Downtown Overlay, a Downtown District, or any other applicable local, State, or Federal regulation; and
b.
The relief does not cause substantial detriment to the public good or impair the purpose and intent of this Overlay.
2.
Appeals of a decision by the Director of Community Development shall be made to the Board of Appeals for interpretation.
C.
General Requirements.
1.
All buildings must be designed in one of the following architectural styles:
a.
Georgian
b.
Federal/Adam
c.
Greek Revival
d.
Neoclassical
e.
Stick
f.
Queen Anne
g.
Shingle
h.
Folk Victorian
i.
Romanesque
j.
Italianate
k.
Tudor Eclectic
l.
Beaux Arts
m.
French Colonial
n.
French Eclectic
o.
French New Traditional
2.
Specific elements of the required styles are identified in Section 2.8.7.D through M. More information on each style can be found in A Field Guide to American Houses by Virginia Savage McAlester, Residential Architectural Styles in Georgia by the Historic Preservation Division of the Georgia Department of Natural Resources, or other architectural resources.
D.
Georgian. Elements of the Georgian style are as follows:
Source: A Field Guide to American Houses by Virginia Savage McAlester
E.
Federal/Adam. Elements of the Federal/Adam style are as follows:
Source: A Field Guide to American Houses by Virginia Savage McAlester
F.
Greek Revival. Elements of the Greek Revival style are as follows:
Source: A Field Guide to American Houses by Virginia Savage McAlester
G.
Neoclassical. Elements of the Neoclassical style are as follows:
Source: A Field Guide to American Houses by Virginia Savage McAlester
Source: A Field Guide to American Houses by Virginia Savage McAlester
I.
Queen Anne. Elements of the Queen Anne style are as follows:
Source: A Field Guide to American Houses by Virginia Savage McAlester
J.
Shingle. Elements of the Shingle style are as follows:
Source: A Field Guide to American Houses by Virginia Savage McAlester
K.
Folk Victorian. Elements of the Folk Victorian style are as follows:
Source: A Field Guide to American Houses by Virginia Savage McAlester
L.
Romanesque. Elements of the Romanesque style are as follows:
Source: A Field Guide to American Houses by Virginia Savage McAlester
M.
Italianate. Elements of the Italianate style are as follows:
Source: A Field Guide to American Houses by Virginia Savage McAlester
N.
Tudor Eclectic. Elements of the Tudor Eclectic style are as follows:
Source: A Field Guide to American Houses by Virginia Savage McAlester
O.
Beaux Arts. Elements of the Beaux Arts style are as follows:
Source: A Field Guide to American Houses by Virginia Savage McAlester
P.
French Colonial. Elements of the French Colonial style are as follows:
Source: A Field Guide to American Houses by Virginia Savage McAlester
Q.
French Eclectic.
Source: A Field Guide to American Houses by Virginia Savage McAlester
R.
French New Traditional. The French New Traditional style draws upon the three French styles identified earlier in this section, but is a unique style due to the way it blends elements from the various French styles. Elements of the French New Traditional Style are as follows:
Source: A Field Guide to American Houses by Virginia Savage McAlester
(Ord. No. 748, §§ 1, 2, 9-18-2017; 758, §§ 1, 2, 5-7-2018)
2.8.8. Storefront Street Requirements.
A.
Applicability. These regulations apply to the portions of sites abutting the street segments designated in the Downtown Alpharetta Storefront Street Table.
Downtown Alpharetta Storefront Street Table
B.
Building Type Restrictions. Buildings abutting a street segment identified in the Downtown Alpharetta Shopfront Table are limited to Mixed-Use Buildings or Shopfronts. Additional building types may be provided to the rear of a conforming Mixed-Use Building or Shopfront.
2.9.1. Applicability.
A.
This Section applies to all sites in the Downtown Overlay except 'For-Sale' residential lots.
B.
'For-Sale' residential lots must comply with the full requirements of Section 3.2 of the Unified Development Code.
C.
Sites subject to this Section and with a building coverage under 70% must comply with the full requirements of Section 3.2 of the Unified Development Code.
D.
Sites subject to this Section and with a building coverage of 70% or more must comply with one of the following:
1.
The full requirements of Section 3.2 of the Unified Development Code; or
2.
All requirements of Section 3.2 of the Unified Development Code except Section 3.27.A, which are replaced with the requirements of Section 2.9.2 below.
2.9.2. Minimum Tree Density Requirements.
A.
A minimum of one Overstory tree must be provided on-site for every 400 square feet of a site not covered by buildings.
B.
The required Overstory tree must have a minimum 4-inch caliper.
C.
The required number of Overstory trees may be achieved by counting existing trees to be preserved, planting new trees according to the standards of this Section, or some combination of the two.
D.
All sites shall comply with the applicable street tree requirements in the adjacent street.
2.10.1. Purpose.
The purpose of Heritage Design Areas is to protect the unique character of established areas in Downtown Alpharetta by requiring new development to be consistent with the unique, character-defining elements of the area.
(Ord. No. 757, § 1(Exh. A), 5-9-2018)
A.
Territorial Application.
1.
The following map identifies the boundaries of the Heritage Design Areas and is incorporated by reference into the Official Zoning Map, as provided for in Sec. 1.2.1.A.
B.
General.
1.
This Section applies to all sites in designated Heritage Design Areas.
2.
The Section applies in addition to the requirements of the zoning district in which a site lies.
C.
Historic Preservation Incentive Zoning. When a site includes one or more historic properties that have been designated in accordance with Sec. 2.9 - Historic Preservation Incentive Zoning of the City of Alpharetta Unified Development Ordinance, the following additional incentives apply:
1.
Building Coverage Exclusion. Designated contributing historic buildings are excluded from building coverage calculations. This exclusions also applies to historic accessory structures such as barns, carriage houses, garages, and similar structures that would otherwise be counted towards in building coverage.
2.
Building Coverage Incentive. The maximum building coverage of a site may be increased an additional 5% for each designated historic building on the site. Historic accessory buildings such as barns, carriage houses, garages, and similar structures are not considered designated historic buildings for the purpose of this increased in lot coverage.
D.
Building Coverage.
1.
The maximum building coverage of a site may not exceed 70%, except as allowed for in Sec. 2.10.2.C. above for sites utilizing Historic Preservation Incentive Zoning.
2.
When a site is subdivided into individual lots, the building coverage on any individual lot may exceed the maximum permitted building coverage, provided that the overall maximum building coverage of the site is not exceeded.
E.
Building Placement.
1.
Front Yard Setbacks along Public Streets.
a.
The minimum required front yard setback along a public street shall be as follows:
i.
If a site includes an existing building to remain, the minimum front yard setback shall be the setback of the existing building.
ii.
If a site includes no existing building to remain, the minimum front yard setback shall be the average front yard of the existing buildings on adjacent developed lots within the same block face. If only one adjacent lot is developed, the minimum front yard setback shall be the front setback of the existing adjacent building.
iii.
In all other situations, the minimum front yard setback shall be established by the applicable zoning district.
b.
The maximum permitted front yard setback along a public street is the largest front setback of any existing building on the block face, except when the minimum setback required by the applicable zoning district is greater.
c.
For the purpose of calculating front yard setbacks, a block face means one side of a public street between two consecutive intersecting public streets. Only the portion of such side that is located in the Heritage Design Area may be included in the calculation.
2.
Site Side Yard Setbacks. The minimum side yard setback on a site may not be less than 5 feet, except when a greater minimum setback is required by the applicable zoning district.
3.
Site Rear Yard Setbacks. The minimum rear yard setback on a site may not be less than 5 feet, except when a greater minimum setback is required by the applicable zoning district.
F.
Bulk and Mass.
1.
Building Height. The maximum building height is 46 feet. Properties that take advantage of the height incentive shall restrict uses to restaurant with no drive-through, office, non-automotive retail and residential with a conditional use.
G.
Parking.
1.
Properties that save a structure on the City's List of Contributing Historic Structures shall be permitted to use the structure for any use permitted within the underlying zoning district and said use shall be exempt from meeting the minimum required parking spaces.
H.
Parking Lots and Driveways.
1.
Parking lots and driveways may be constructed of pervious or impervious paving materials. Alternative materials such as gravel or crushed stone are also allowed when the City Transportation Engineer finds that such material is suitable for the anticipated use and neither impairs the public health, safety, or welfare, nor creates a public nuisance.
(Ord. No. 757, § 1(Exh. A), 5-9-2018)
A.
The requirements of this Article apply to all Downtown Zoning Districts.
B.
The requirements of the Unified Development Code also apply in all Downtown Districts unless expressly stated otherwise in this Article.
3.2.1. Site.
Defined. A site is any lot or group of contiguous lots owned or functionally controlled by the same person or entity, assembled for the purpose of development. Lots within a site may be separated by an existing public right-of-way.
A.
Lot Frontage.
1.
Every lot (except cottage court lots) and every cottage court site must have frontage upon:
a.
An existing public street, or
b.
A new public street or private street built to standards of Section 2.3.3, or
c.
A civic space meeting the standards of Section 3.2.4.B or an existing City of Alpharetta park. No more than 20% of the total lots in a site (except cottage court lots) may front on a civic space or existing City park.
2.
Alleys may not be used to satisfy the lot frontage requirements of Section 3.2.2.A.1 above.
3.
The minimum lot frontage is 20 feet or the minimum lot width identified in district regulations, whichever is greater.
4.
Lots having frontage on a civic space or existing City park must still comply with fire lane access requirements, as applicable.
A.
Defined. The dwelling units per acre of land.
B.
The residential density of a site is expressed in dwelling units per acre of land and is calculated by dividing the total dwelling units on a site by the site's acreage. Residential density includes both a base and maximum density.
C.
The ability to achieve the permitted density may be further restricted by site conditions, district regulations, or conditions or rezoning.
A.
Defined. Open space is the horizontal outdoor area of a site reserved to provide separation, resource protection, scenic enjoyment, recreation, or amenity. It includes two types: civic space and amenity space.
B.
Civic space. Civic space is the portion of open space for public use defined by the combination of certain physical constants including the relationships among their intended use, their size, their landscaping, and their adjacent buildings. Civic spaces are limited to the following types. Each civic space approved must be usable for civic purposes. Above-ground cisterns require architectural and/or landscape screening that compliments the architecture of the building and is of like or similar materials used in the building's construction. The cisterns and other vertical runoff reduction measures and their screening shall require approval by the Community Development Director.
1.
Park. An open space available for structured or unstructured recreation. A park may be independent of surrounding buildings at its edges. Its landscape may consist of paths and trails, meadows and lawns, water bodies, runoff reduction measures such as bioretention areas, swales, cisterns, and woodlands. Recreation fields and courts may also be included. The minimum size for a park is one acre.
2.
Square. An open space available for unstructured recreation and civic purposes. A square is spatially defined by building or streets at its edges. Its landscape must consist of paths and trees, and may also include runoff reduction measures such as bioretention areas and cisterns, lawns and non-asphalt paved surfaces. The minimum size for a square is one-half acre.
3.
Plaza. An open space, available for civic purposes and commercial activities. A plaza must be spatially defined by building or streets at its edges. Its landscape must consist primarily of non-asphalt paved surfaces and trees, and may include runoff reduction measures such as bioretention areas and cisterns. The minimum size for a plaza is one-quarter acre.
4.
Pocket Park. An open space, available for unstructured recreation. A pocket park may be spatially defined by buildings or streets at its edges. Its landscape must consist of lawn and trees, and may include runoff reduction measures such as bioretention areas and cisterns. There is no minimum size for pockets parks.
5.
Playground. An open space designed and equipped for the recreation of children. A playground must be fenced and may include an open shelter. Playgrounds must be interspersed within residential areas, may be placed within a block, and may be included in parks and greens. There is no minimum size for playgrounds. Playgrounds may include runoff reduction measures such as bioretention and underground detention.
C.
Amenity space. Amenity space is the covered or uncovered, but unenclosed, outdoor areas of at least 100 square feet each for use by the occupants, invitees and guests of the development and specifically excluding Civic Spaces and required sidewalks. Amenity spaces may include, but are not limited to:
1.
Rooftop decks;
2.
Balconies;
3.
Patios and porches;
4.
Outdoor dining areas;
5.
Pool areas;
6.
Tennis courts, basketball courts, and similar uses;
7.
Yards, lawns, and gardens;
8.
Hardscape areas improved for pedestrian enjoyment; and
9.
Wooded areas.
10.
Runoff reduction measures such as bioretention areas and cisterns.
Each amenity area approved must function as an amenity area. Above-ground cisterns require architectural and / or landscape screening that compliments the architecture of the building and is of like or similar materials used in the building's construction. The cisterns and other vertical runoff reduction measures and their screening shall require approval by the Community Development Director.
D.
Open space may be privately or publically owned. Private open space is open space that is owned by a corporation, individual, or homeowners association. Public open space is open space owned by a governmental agency.
E.
Wetlands, lakes, ponds, streams, rivers, flood zones, and stream buffers may only be considered open space when located within one of the five types of civic spaces identified in Section 3.2.4.B, unless part of approved stormwater management plan for the site that includes runoff reduction measures.
F.
No required buffer, except for stream buffers, may be used to satisfy open space requirements.
G.
Stormwater management facilities for the site may be used to satisfy open space requirements if they meet this Chapter's definition of open space. Open space credit may be given at the discretion of the Director of Community Development.
H.
No areas used for vehicles, except for incidental service, maintenance, or emergency actions, may be used to satisfy open space requirements.
I.
A site's Open space requirements shall be considered completely satisfied when a development incorporates a historic building that complies with all of the following:
1.
The building is at least 75 years old and is listed on the following table:
2.
_____
3.
The building is deemed fit for human habitation in accordance with Article III of Chapter 5 of The Code of the City of Alpharetta, Georgia; and
4.
A binding legal agreement that established a program for guaranteeing maintenance of said building through a condominium association, a homeowner association, bonding, or other protective maintenance guarantees is signed by all property owners and/or their prospective successors in title and is submitted to the City of Alpharetta.
J.
When a historic building used to satisfy open space requirements in accordance with Section 3.2.4.I. is subsequently completely destroyed, the applicable open space requirements of the zoning district must be satisfied within one year unless a variance is granted by the Board of Appeals.
(Ord. No. 732, §§ 47—55, 2-6-2017; Ord. No. 738, § 4(Exhs. C, D), 5-1-2017; Ord. No. 757, § 1(Exh. A), 5-9-2018; Ord. No. 827, § 1(Exh. B), 6-7-2021)
Building types are allowed by Downtown Zoning District as shown below.
3.4.1. Allowed Use Table.
A.
In order to regulate a variety of similar uses, use categories have been established for principal uses. Use standards for both principal and accessory uses are specified in Section 2.3 and Section 2.7 of the Unified Development Code. Uses not listed may be interpreted by the Director of Community Development. When the Director of Community Development cannot determine placement, an application shall be made to the Board of Appeals for interpretation.
B.
Principal and accessory uses allowed by district are shown in the table below.
A.
Permitted Use (X). Indicates a use is permitted in the respective district. The use is also subject to all other applicable requirements of the Unified Development Code.
B.
Conditional Use (O). Indicates a use may be permitted in the respective district only where approved by the City Council in accordance with Section 4.2 of the Unified Development Code. Conditional uses are subject to all other applicable requirements of the Unified Development Code, including any applicable use standards, except where the use standards are expressly modified by the City Council as part of the conditional use permit approval.
C.
Use Not Permitted. An empty cell indicates that a use is not permitted in the respective district.
(Ord. No. 741, § 4, 6-5-2017; Ord. No. 744, § 2, 7-10-2017; Ord. No. 808, § 4(Exh. D), 9-8-2020; Ord. No. 836, § 1(Exh. C), 10-4-2021; Ord. No. 843, § 4(Exh. D), 4-18-2022)
3.4.3. Specific Use Standards.
The following principal and accessory uses must conform with the indicated use standards.
A.
Dwelling, 'For-Sale' Accessory. Where a Dwelling, 'For-Sale' Accessory is allowed, it is subject to the following:
1.
The dwelling shall be accessory to a permitted commercial use and shall be located above or to the rear of such use to which it is accessory.
2.
The dwelling shall be attached by a common wall with the commercial or office structure to which it is accessory.
3.
The dwelling shall be occupied by a single family, a member of whom is the owner or tenant of the commercial structure to which it is accessory.
4.
The square footage of the dwelling shall not exceed 40% of the combined square footage of the commercial structure and the dwelling.
5.
The dwelling and the commercial structure to which it is accessory shall be in compliance with all applicable provisions of the life safety code, the building code, and other codes of the City.
B.
Live-Work. Where Live-Work is allowed, it is subject to the following:
1.
Live-work is only permitted on the first floor of a dwelling unit.
2.
A minimum of one person must occupy the dwelling containing the live-work use as their primary place of residence.
3.
The live-work use may employ no more than two persons not living on the premises at any one time.
4.
No business storage or warehousing of material, supplies or equipment is permitted outside of the dwelling containing the live-work use.
5.
The nonresidential use of the live-work use is limited to a permitted or conditional use in the zoning district.
6.
No equipment or process may be used in connection with the live-work use that creates noise, vibration, glare, fumes, odors, or electrical interference detectable to the normal senses, off the premises.
7.
No more than 5 customers are permitted on the premises at any one time.
3.5.1. Purpose.
The purpose of this district is to provide for compact development in Alpharetta's core that is compatible with the area's historic character and includes a variety of commercial uses serving the entire city, civic uses, and residential uses.
3.5.2. Building Types Allowed.
The following building types are allowed:
A.
Detached House
B.
Carriage House
C.
Semi-Detached House
D.
Townhouse
E.
Cottage Court
F.
Walk-Up Flat
G.
Stacked Flat
H.
Commercial House
I.
Shopfront
J.
Flex Building
K.
Mixed-Use Building
L.
General Building
M.
Civic Building
3.6.1. Purpose.
The purpose of this district is to provide for a variety of residential housing, commercial, and civic options along major corridors leading to the Downtown Core.
3.6.2. Building Types Allowed.
The following building types are allowed:
A.
Detached House
B.
Carriage House
C.
Semi-Detached House
D.
Townhouse
E.
Cottage Court
F.
Walk-Up Flat
G.
Stacked Flat
H.
Commercial House
I.
Shopfront
J.
Flex Building
K.
Mixed-Use Building
L.
General Building
M.
Civic Building
3.7.1. Purpose.
The purpose of this district is to provide for a variety of residential housing options, civic uses, and limited commercial uses and developments that are compatible with residential surroundings.
3.7.2. Building Types Allowed.
The following building types are allowed:
A.
Detached House
B.
Carriage House
C.
Semi-Detached House
D.
Townhouse
E.
Cottage Court
F.
Walk-Up Flat
G.
Commercial House
H.
Shopfront
I.
Flex Building
J.
Mixed-Use Building
K.
General Building
L.
Civic Building
3.7.6. Commercial Parking Lot Requirements.
A.
Commercial parking lots must provide a minimum 10 feet wide landscape strip between parking bays. Such strip shall be provided in addition to the requirements of Section 2.3.5 of the Unified Development Code.
B.
The required landscape strip must be planted with a minimum of one shade tree for each 30 feet of landscape strip length or portion thereof.
3.8.1. Purpose.
The purpose of this district is to provide for a variety of housing options in a residential setting.
3.8.2. Building Types Allowed.
The following building types are allowed:
A.
Detached House
B.
Carriage House
C.
Semi-Detached House
D.
Townhouse
E.
Cottage Court
F.
Civic Building
(Ord. No. 732, § 59, 2-6-2017; Ord. No. 737, § 5, 5-1-2017; Ord. No. 748, § 4, 9-18-2017)
Live-Work. Nonresidential activity conducted wholly within a residential dwelling that allows employees, customers, clients or patrons to visit.
Stub-out. A shortened thoroughfare which is intended to provide connectivity at some point in the future.
Wall Plate. A horizontal load-bearing member in a wall assembly. The top of the wall plate is the top most structural piece of the wall.