Landscape Design Standards
(a)
The purpose of the landscape design standards is to establish requirements and guidelines for the design, installation, and maintenance of landscapes within the City of Dacono. The intent is to safeguard public health, safety, and welfare, to enhance environmental, economic, aesthetic and recreational resources, and to promote water conservation.
(b)
Well-designed landscaping enhances development and helps maintain the quality of life in the community. Trees, shrubs, and other plantings improve aesthetic appeal and property values. Well-designed landscapes provide vital community services, such as enhancing soil quality, reducing runoff, erosion and sedimentation, moderating temperatures, buffering noise and diverting winds. As no single landscaping plan can be prescribed for all developments due to differing land features, topography and soils, these guidelines encourage flexible and creative landscape design solutions.
(c)
All landscape plans shall promote public safety, sustainable development and water conservation. This includes: design for optimum site accessibility and visibility, as well as safe pedestrian and traffic circulation; fire mitigation; reduction of heating and cooling requirements; shading of large parking and paved areas; reduction of air, water, light, and noise pollution; enhancement of outdoor recreational opportunities; protection of endangered and significant vegetation, soils and wildlife habitat; prevention of invasive species; and reduction of potable water consumption.
(d)
Landscape design should be sensitive to the characteristics and maintenance requirements of the plants selected. Plant species should be selected that are hardy and adapted to the climate and soil conditions in the area.
(e)
All improvements should reflect the context of the area and the region as a whole as well as the people who will use the spaces. The character of this area is defined by the views of the front range and large, open expanses of undeveloped land. Development within this area should strive to fit into this environment while creating aesthetically pleasing, functional and environmentally sensitive places.
(Ord. No. 787, § 1, 9-8-2014)
(a)
These landscaping standards (and landscape plan review) shall apply to all public and private land located within the City, and shall apply to:
(1)
All new development and redevelopment of buildings and land, including applications for property of any size in commercial and industrial zone districts;
(2)
All planned unit development (PUD) applications; and
(3)
Residential subdivisions (streetscapes, hardscapes, open space, parks, homeowner association property).
(b)
Exemptions. These standards do not apply to the following land uses:
(1)
Single-family detached and multi-family residential properties of four (4) or fewer units not including common areas.
(2)
Verified agricultural activity;
(3)
A development or redevelopment project that cumulatively increases the gross floor area of a lot by less than fifty percent (50%) of the existing floor area, or modifies the total site area by less than thirty-five percent (35%).
(Ord. No. 787, § 1, 9-8-2014)
As used in this Article, the following words and terms shall have the following meanings, unless context clearly indicates otherwise:
Adapted plant means a plant that is not indigenous, or native, to Colorado, but is used in landscaping due to its adaptable qualities. It may be a nursery trade cultivar or variety; or a native to the region that does not naturally occur in the City limits.
As-built plans means plans reflecting the actual conditions of a landscape or irrigation system installation.
Backflow preventer means a mechanical device installed at the beginning of the irrigation system to prevent a reverse water flow and contamination of the potable water supply.
Berm means an earthen mound designed to provide visual interest, screen undesirable views, and/or decrease noise. To promote efficient irrigation and maintenance measures, berms shall not exceed a slope of three (3) horizontal units to one (1) vertical unit and shall be graded to appear as smooth, rounded, naturalistic forms.
Caliper means the measurement in diameter of a tree trunk measured six (6) inches above the ground for trees up to four (4) inch size and twelve (12) inches above the ground for larger sizes.
Canopy (also known as overstory) means the upper vegetative cover of a tree or plant grouping.
Certified Irrigation Designer means a person who has completed the Certified Irrigation Designer Program of the Irrigation Association.
Compost means a mixture of decayed plants and other organic matter used to improve soil structure and provide nutrients.
Control valve means valves that turn on and off water to the individual zones of sprinklers or drip emitters.
Controller means an electric timing device that operates each zone of an irrigation system for a predetermined time and frequency.
Coverage means the extent of area where water is applied by sprinkler heads. This is used in the context of proper head spacing. Head to head coverage is sprinkler head spacing that matches the spray radius of the sprinkler.
Critical root zone means the ground area around a tree trunk determined by a radius of one (1) foot for each one (1) inch of trunk diameter.
Deciduous means a plant with foliage that is shed annually.
Developed lot means platted land with all adjacent public improvements installed but does not include any buildings or structures.
Development means any lot or parcel on which a site improvement or change is made including buildings, landscaping, parking, streets and/or utilities.
Drip line means the area defined by the outermost circumference of a tree canopy from where water drips onto the ground.
Easement means a right granted by a property owner permitting a designated part or interest of the property to be used by others for a specific use or purpose.
Engineer means a professional engineer licensed in the State of Colorado.
Evapotranspiration (ET) means a measure of water depletion from the soil due to evaporation from the soil surface and transpiration through plant foliage.
Evergreen means a tree or shrub with foliage that persists and remains green year around.
Final grade means the finished ground surface level or contour after grading, construction, and soil preparation for plants.
Flow sensor means a device that measures the rate of water flow in an irrigation system quantified in gallons per minute (GPM).
Gallons per minute (GPM) means measurement of the flow rate, or volume, of water in one (1) minute.
Genus means a closely related and definable group of plants comprising one (1) or more species.
Ground cover means plants other than turf grass, normally reaching an average maximum height of not more than twenty-four (24) inches at maturity.
Hardscape means any non-living materials or structural site improvements, that may include, buildings, paving, walkways, walls, fences, arbors, patios, site furnishings, decorative rock, stones, and similar materials.
High-water-use turf means turfgrass that has an exceptionally high water requirement to prevent dormancy, typically twenty (20) inches of supplemental irrigation during each annual growing season.
Hydrozone means a portion of a landscape area having plants with similar water needs that are either not irrigated or irrigated and grouped by a circuit or circuits with the same watering schedule.
Hydrozoning means the design practice of grouping plants by similar water requirements to maximize potential efficiency of irrigation.
Invasive plant species. Invasive plants are introduced species that can thrive in areas beyond their natural range of dispersal. These plants are characteristically adaptable, aggressive, and have a high reproductive capacity. Their vigor combined with a lack of natural enemies often leads to outbreak populations, displacement of native plants, and dominance of native plant communities. Also, any plant species listed by the U.S. Department of Agriculture as a noxious weed in the State of Colorado is considered an invasive plant species.
Irrigation system means an overall system of various components, including pipelines, sprayers, bubblers, drip emitters and other materials, including timers, designed, and installed to ensure that all landscaped areas and plant materials are adequately watered on a regular basis. An irrigation system shall include a backflow prevention device. "Irrigation system" does not include the use of portable sprinklers, hoses, or hand watering.
Landscape buffer means a land area with landscape plantings and other components used to visibly separate one (1) use from another or to shield or block noise, lights, or other nuisances.
Landscape grading plan means a plan drawn to scale that shows the designed landscape gradient and elevation using contour lines or numeric notation of elevations.
Landscape setback means an area adjacent to street rights-of-way, and along the non-street boundaries reserved for the primary use of landscaping. The landscape setback extends from the property line into the private property. Landscape setback distance is determined by the classification of the adjacent street right-of-way as designated by the City.
Landscaping means the planting and continuous maintenance of a combination of trees, shrubs, vines, groundcovers, flowers, native vegetation, and turf on the land. Landscaping includes the installation of various decorative features, such as benches, water features, and artwork, and the use of hardscape as part of an overall design.
Licensed Architect means a person who is currently licensed by the State of Colorado to practice the profession of architecture.
Licensed Landscape Architect means a person who is currently licensed by the State of Colorado to practice the profession of landscape architecture.
Licensed Professional Engineer means a person who is currently licensed by the State of Colorado to practice the profession of engineering.
Living landscape materials means living trees, shrubs, vines, flowers, grasses, lawn and ground covers.
Low-water-use plants means plants that require less than thirty percent (30%) of reference evapotranspiration to maintain optimum appearance.
Maintenance means any activity undertaken to prevent the deterioration, impairment, or need for repair of an area, structure, right-of-way, or land use, including but not limited to management, repair or replanting of plant materials, landscape materials, and/or irrigation system.
Microclimate means the climate of a specific place within an area, as contrasted to the entire area, due to physiographic variations.
Native plant means a species that is indigenous within the region or State and naturally occurring in one (1) or more plant communities.
Nonliving landscape materials means materials, other than plants, used in the landscape, including crushed rock, sand, wood chips, outdoor furniture, ornamental pieces, and structural features.
Ornamental tree means a small deciduous tree, twenty-five (25) feet or less in height at maturity, planted primarily for its ornamental value such as flowers, leaf color, size or shape.
Parking lot island means a landscaped area, protected by standard curb, and typically surrounded on at least two (2) sides by parking spaces or a driveway aisle.
Parking lot tree means a shade tree that is planted in a designated area within a parking lot.
Parkway means that portion of the public street right-of-way typically located between the curb and private property line for which the adjacent property owner has a legal responsibility to maintain for the public good.
Perennial means a herbaceous plant species that lives for more than two (2) years. A short-lived perennial lives for approximately three (3) to five (5) years. Long-lived perennials live for approximately five (5) to twenty (20) years.
Plant community means a natural association of vegetation that is dominated by one (1) or more prominent species, or has a characteristic physical attribute.
Plant materials means trees, shrubs, vines, groundcovers, flowers and grass.
Practical turf areas means a landscape design and management concept promoting turf only in those areas of the landscape that are functional, and the efficient management of supplemental irrigation required in those areas.
Pressure or(PSI) means the force that moves water through a pipe or piping system and is measured in pounds per square inch (PSI) or feet of head. One (1) foot of water depth equals 0.433 PSI, and one (1) PSI equals 2.31 feet of head.
Public right-of-way means that area between the property line and the edge of asphalt, or back of curb associated with a public road.
Rain sensor or rain shutoff device means a device connected to an irrigation controller that overrides scheduled irrigation when significant precipitation has been detected.
Reference evapotranspiration means the evapotranspiration of a broad expanse of well-watered, four- to six-inch tall cool season grass.
Restrictive covenant means a limitation of the use of land usually set forth in the deed or other recorded instrument.
Screen means a method of reducing the impact of noise and unsightly visual intrusions with less offensive or more harmonious elements such as plants, berms, fences, walls, or any appropriate combination thereof.
Shade tree means a deciduous tree exceeding twenty-five (25) feet in height at maturity.
Shrub means a self-supporting woody perennial plant, evergreen or deciduous, of low to medium height characterized by multiple stems and branches continuous from the base, typically not more than twelve (12) feet in height at its maturity.
Site plan means a two-dimensional representation, drawn to scale, of the total area of a development project, including building footprints, roadways, and parking areas.
Site visibility triangle means the minimum visibility clearance provided at all access point locations, intersection of adjoining streets, and entrance drives. Landscape type, height, and opacity are limited in these areas. Refer to City of Dacono Standards for the Design and Construction of Public Improvements for triangle requirements.
Smart controller means irrigation controllers that automatically update the watering schedule and application rates to allow for changes in real-time water needs throughout the irrigation season. Smart controllers are typically either climatologically and/or soil moisture sensor based.
Soil amendment means organic and inorganic materials added to soil to improve texture, nutrients, moisture holding capacity, microorganism activity, and infiltration rates.
Street right-of-way means the area of land designated for streets, sidewalks, utilities, and public use.
Street tree means a tree planted in the street right-of-way between the curb or edge of road and the adjoining property line (the parkway) to provide shade, spatial definition, and human scale, and to enhance the street environment.
Streetscape means the landscape treatment of a street edge, including vegetation, sidewalks, streetlights, fencing, signs, utilities, etc.
Subdivision means the division of a lot, tract or parcel of land into two (2) or more lots, tracts or parcels, or other division of land in compliance with City requirements.
Texas hybrid bluegrass means a grass hybrid that is a cross between Kentucky bluegrass and Texas bluegrass. Such hybrids demonstrate lower water use requirements than Kentucky bluegrass and are more drought tolerant.
Topsoil means native soil, which is to be stockpiled during construction activities and returned to landscaped areas, and may also refer to imported soil material where native topsoil is substandard or non-existent.
Tree means a large, woody plant having one (1) or several self-supporting stems or trunks and numerous branches. It may be classified as deciduous or evergreen.
Tree-lawn means the area between the back of curb and the detached sidewalk typically characterized by ground cover, lawn and shade trees, also referred to as a parkway.
Turf/turfgrass means a continuous plant coverage consisting of hybridized grasses that, when regularly mowed, form a dense growth of leaf blades and roots.
Vegetation means living plants, or the sum total of plant life within an area.
Velocity means the rate of water flow calculated in feet per second (FPS).
Water allowance/water budget means the maximum annual allowed volume of water, measured in inches, used for landscape irrigation for a landscaped area.
Weather station means, used in conjunction with the irrigation controller, either as a single on-site weather station or from a network of stations, to automatically adjust the irrigation watering schedule according to local rainfall and moisture conditions.
Xeriscape means a water efficient landscape adapted to the local environment.
Xeriscape principles means methods of professional landscaping for water conservation that include: planning and design, soil analysis, efficient irrigation, appropriate plant selection, practical turf areas, use of mulches, and proper maintenance.
(Ord. No. 787, § 1, 9-8-2014)
(a)
Landscape design. Colorado State law governs the sizes and types of projects that unlicensed individuals can design. With the exception of residential landscape design, consisting of landscape design services for single- and multi-family residential properties of four (4) or fewer units not including common areas, all projects shall be prepared by a Licensed Landscape Architect.
(b)
Irrigation design. To be qualified as an Irrigation Design Professional, a designer must certify that they are qualified to prepare the type of plan(s) that they submit by providing professional qualifications that are possessed. Acceptable professional qualifications include:
(1)
Licensed Landscape Architect.
(2)
Licensed Architect.
(3)
Licensed Professional Engineer.
(4)
Certified Irrigation Designer (CID).
(c)
Verification of licensure or certification, as applicable, will be required at time of application for anyone preparing landscape or irrigation plans.
(Ord. No. 787, § 1, 9-8-2014)
(a)
Landscape plan. All applications for preliminary plat, final plat and planned unit development plans shall be accompanied by an appropriate landscape plan. Applicants should reference the provided landscape checklist in addition to the outlined requirements. Plans may require additional information based on the nature of the application, as determined by the Community Development Director. A completed landscape checklist shall also be submitted with the initial landscape plan.
(b)
Landscape plan submittals shall include the following minimum requirements:
(1)
Plans shall be drawn to scale, not to exceed one inch equals thirty feet (1" = 30'), except for overall plans when enlargements of one inch equals thirty feet (1" = 30') or less are provided for all areas.
(2)
Trees shall be shown at minimum three-fourths (¾) of their mature size. Shrubs, ornamental grasses, perennials and groundcover symbols shall be shown at mature size. Show all areas to be covered with turf, seed mixes and mulches. All plants shall be labeled with full name, key or indicated with a legible symbol unique to each plant variety.
(3)
The plan shall include a plant schedule indicating scientific and common names, quantities or square footage, and installed sizes. Include square footage of all organic and inorganic mulch.
(4)
All plans shall include the designer's name, contact information and State license number or stamp and show the following:
a.
All structures and hardscape elements, both proposed and to remain (buildings, fences, retaining walls, decks, gazebos/patios, pavements, parking areas, curbs, sidewalks, and other structural features);
b.
Dimensions of property lines, easements, buffers and setbacks;
c.
Grading contours and critical elevations;
d.
Existing and proposed overhead and underground utilities;
e.
Street names and adjacent land uses;
f.
North arrow and graphic scale;
g.
All significant natural areas, wildlife habitat, wetland areas, existing vegetation, and all existing trees two-inch caliper or greater in size;
h.
Site distance triangles;
i.
Planting details and notes;
j.
Limits of disturbance boundary for development activities;
k.
Areas designated for stockpiling of topsoil during construction;
l.
Areas designated for snow storage, if applicable;
m.
Land use table showing total percentage of landscaped area, and specific site category requirements; and
n.
Any other information that may reasonably be requested by the Community Development Director.
(c)
Irrigation plan. All landscaping required by this Article shall be irrigated with a permanent irrigation system as necessary for plant establishment and maintenance. Irrigation shall be appropriate to the type and scope of the improvements. Temporary irrigation may only be used to establish native grasses and low-water vegetation. Irrigation plans may be submitted concurrent with the landscape plans. An irrigation plan checklist is required with the initial landscape plan submittal.
(d)
Irrigation plans shall include the following minimum requirements:
(1)
Plans shall be based on the landscape plans and include the landscape plan requirements. Plants and plant areas may be shown either with a lighter gray tone, or not shown.
(2)
Irrigation plan shall show location and type of sprinkler heads, drip areas, valves, piping, water meter, point of connection, backflow device, controllers, and all other major components.
(3)
Irrigation legend/schedule shall include sizes and quantities of all major components.
(4)
Provide a zone schedule showing water flow and pressure requirements, in gallons per minute (gpm) and pounds per square inch (psi).
(5)
Critical analysis demonstrating adequate water flow and pressure from the meter to serve the zone(s) with the highest pressure loss and water flow requirement.
(e)
Any submittal with incomplete or missing information may result in the plan being returned without review. The City reserves the right to request additional information pertaining to specific landscape and irrigation plans beyond the general requirements in these standards.
(f)
The final landscape and irrigation plan shall be approved by the City prior to the construction of any landscape and irrigation improvements.
(g)
Approval is concurrent with approved subdivision or site development plan, including any extensions to such approvals as may be granted by the City Council. Cost estimates provided for the approved landscape and irrigation plans shall be valid for one (1) year from the date of City approval of the final plans; if not constructed by such date, cost estimates must be updated before the work may commence.
(Ord. No. 787, § 1, 9-8-2014)
(a)
Existing vegetation.
(1)
Conservation of existing plant communities. Buildings and parking areas should be located in a manner that will preserve existing healthy plant communities. Site design and construction techniques shall be used to minimize the impact on existing native plants and plant communities.
(2)
Endangered, unique, and/or significant vegetation and wildlife shall be protected in accordance with the federal Endangered Species Act of 1973 (16 U.S.C. 1531 et seq.), and the Colorado Nongame, Endangered, or Threatened Species Conservation Act (Section 33-2-101, C.R.S.).
(3)
Wetlands and riparian zones shall be preserved at the discretion of the City and according to all other applicable State and federal mandates and regulations.
(4)
Use of any plant species listed by the Colorado Department of Agriculture as a "Noxious Weed Species", according to the Colorado Noxious Weed Act, Sections 35-5.5-101 through 35-5.5-119, C.R.S., is prohibited. Plant materials that are discouraged include:
a.
Cotton bearing cottonwoods (Populus deltoides).
b.
Siberian and Chinese elm (Ulmus pumila/parvifolia).
c.
Tree of heaven (Ailanthus altissima).
d.
Russian olive (Eleagnus
angustifolia).
e.
Purple loosestrife (Lythrum
salicaria).
f.
Black locust (Robinia pseudoacacia).
(b)
Soils. The following soil conservation and enhancement measures shall be incorporated into the landscape design:
(1)
Minimize soil disturbance in design and construction. Limit disturbance of soils to the minimum area necessary for construction activities. Prevent vehicle and foot traffic and storage of materials or equipment in areas outside the designated development footprint.
(2)
Stockpiling topsoil. Existing topsoil should be preserved as feasible and incorporated later into site plantings. Stripping and stockpiling of indigenous soil (topsoil) shall be required during construction (except as waived by City staff). Topsoil stockpiles shall be protected from compaction, erosion, and contamination.
(3)
Compacted soils. Parking lot islands and other areas that have been previously compacted shall be thoroughly loosened and amended to a depth of twenty (20) inches. Always have underground utilities and other underground plumbing or wires located and marked prior to excavation. Deep tillage should be performed when soil moisture content is forty percent (40%) or less.
(4)
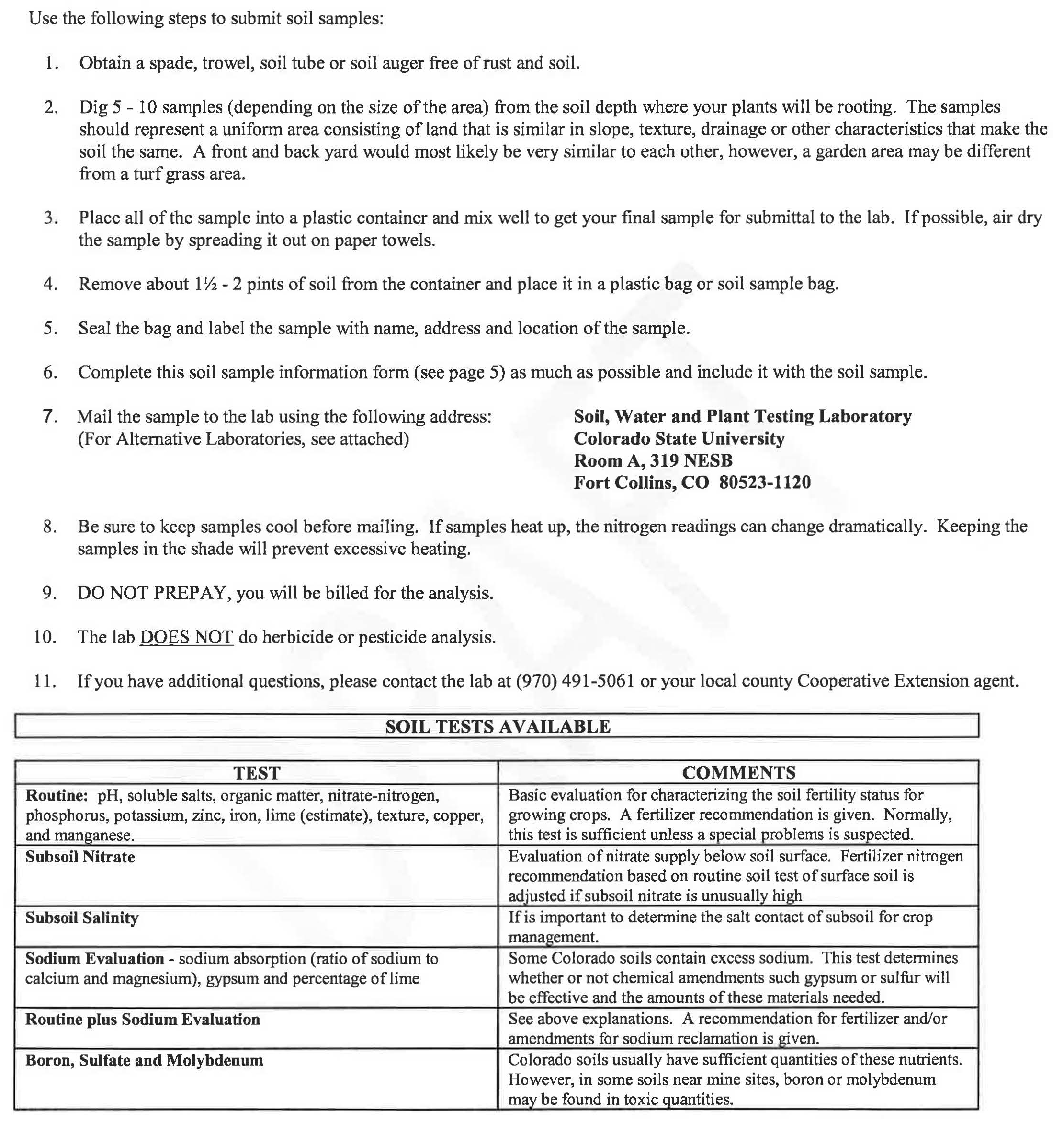
Soil test. All designs shall provide site-specific soil test results with or on the landscaping plan. This will provide specific nutrient deficiencies/surplus, soil structure characteristics, and other pertinent qualities of the on-site soil. Recommended structural and chemical or organic amendments shall be noted on plans. Soil amendment needs may be significantly reduced for native and regionally adapted plant materials.
a.
The soil analysis shall determine the organic and inorganic composition of native/indigenous soil in landscaped areas, and shall include:
1.
Soil texture.
2.
Total exchange capacity.
3.
Conductivity/salts.
4.
Organic matter.
5.
Acidity/pH.
6.
Content of nitrogen, phosphorus, potassium, zinc, iron, copper, manganese and lime.
b.
The soil analysis shall include specific nutrient recommendations based on the soil test results for the type of plant material to be grown in each landscaped area.
(5)
Soil amendments.
a.
Organic matter.
1.
Prior to plant and irrigation installation, compost shall be added as indicated by the soil test results. For turf areas apply compost at a rate of four (4) cubic yards per one thousand (1,000) square feet of permeable area. For trees, shrub and groundcover beds, and native grass areas apply compost at a rate of at least three (3) cubic yards per one thousand (1,000) square feet of permeable area. For individual trees and shrubs, in lieu of the above requirement, apply one-third ( 1/3; ) area by volume of compost to backfill mixed thoroughly in the tree or shrub pit.
2.
Compost shall be a well decomposed, stable, weed free organic matter source. It shall be derived from: agricultural, food, or industrial residuals; biosolids (treated sewage sludge); yard trimmings; source-separated or mixed solid waste. The product shall contain no substances toxic to plants and shall be reasonably free (< one percent (1%) by dry weight) of man-made foreign matter. The compost will possess no objectionable odors and shall not resemble the raw material from which it was derived. For acid loving plants, only use compost that has not received the addition of liming agents or ash by-products. In addition, compost shall conform to the compost product parameters provided by the City.
b.
Nutrients.
1.
Apply nutrients prior to soil tilling, based on specific nutrient recommendations of the soil test results for the type of plant material to be grown in each landscaped area. Reduced application may be considered for native plant areas. Organic and slow release fertilizer alternatives are encouraged.
2.
Thoroughly mix soil amendments into the upper six (6) to eight (8) inches of soil. Prepared soils shall be graded to within one-tenth ( 1/10 ) of a foot, and shall be free of rock, debris or dirt clods over three-quarter-inch diameter in size. Native seed areas may contain dirt clods up to two-inch diameter in size. A copy of all receipt(s) reflecting approved volume and types of soil amendments is required prior to final approval.
(6)
Mulches.
a.
Organic mulches include: bark, straw, leaves, wood chips, wood grindings, and pole peelings. Inorganic mulches include: rock, cobble, recycled materials, and various gravel products. Organic mulches are preferred for plants as they improve soil quality, reduce temperature extremes in the soil, help retain moisture and reduce evaporation. Both organic and inorganic mulches reduce weed growth, erosion, and provide landscape interest. Light weight organic mulch should not be used in the bottom of drainage swales or on slopes greater than four to one (4:1). Shredded mulches are recommended for high wind areas.
b.
Place mulch directly on the soil or on permeable weed control fabric. Where permeable fabric is used, insure that openings in the fabric are large enough to allow for future growth and spread of the installed plants. The use impermeable fabric or plastic beneath mulch or in planting areas is prohibited.
1.
Mulches shall be used in all planting beds and around the base of trees and other plants in turf, seeded areas and large cobble areas as practical. The characteristics of all proposed mulches shall be noted, including size, shape, color, depth, and any underlayment.
2.
All mulched areas shall be minimum three (3) inches in depth after settling. Mulches shall not be applied up to and around the base or trunk of newly installed plants.
3.
Large expanses of rock or cobble mulches are prohibited.
4.
Weed barrier fabric shall not be placed under wood organic mulches.
(7)
Erosion control shall be provided for all slopes exceeding four to one (4:1), or as required by the City. Methods such as wattle, erosion control mats, seed blankets, and other methods shall be noted and incorporated into the landscape design.
(8)
Landscape edging consisting of metal, wood, masonry, or other material shall separate mulched planting beds from turf and seeded areas.
(Ord. No. 787, § 1, 9-8-2014)
(a)
Landscape improvements shall be designed with water-efficiency as a goal. Landscape water-efficiency shall be measured by an annual water budget to facilitate water conservation. These guidelines shall apply to the design of all regulated landscapes:
(1)
Landscapes shall use the following xeriscape design principles to facilitate water conservation:
a.
Well-planned planting schemes;
b.
Appropriate turf selection to minimize the use of high-water turf;
c.
Use of organic mulch to maintain soil moisture and reduce evaporation;
d.
Zoning of plant materials according to their microclimatic needs and water requirements;
e.
Improvement of the soil with organic matter as needed;
f.
Efficient irrigation systems; and
g.
Proper maintenance and irrigation schedules.
(2)
Native, adapted and xeric plant species should be used in all landscape plans. Group plants according to similar moisture, light, and drainage needs. The use of native species should be prioritized. Regionally adapted plant species may be used provided they are not invasive. Landscape improvements shall consist of a variety of species to enhance the visual aspect as well as the functional aspect, such as shading and windbreaks, of the landscaped area.
(b)
Proper hydrozoning of plants is important for long-term plant health and sustainability. Plants should be selected and grouped based on needs determined during the planning and design and soil analysis stages.
(c)
The total amount of high water use zones on a property shall not exceed thirty-five percent (35%) of the total landscaped area.
(d)
Turf areas. Turf areas may be installed as sod or seeded. Turf shall not be installed in areas that are impractical or difficult to maintain and irrigate. This includes parkways under five (5) feet in width, slopes of four to one (4:1) or greater, and narrow or oddly shaped areas. The total area of turf should not exceed twenty-five percent (25%) of the total landscaped area. Exceptions may be allowed for uses such as sport fields and high traffic areas. Low-water varieties of turf grass are encouraged. Texas hybrid bluegrass, buffalo grass, blue grama, fescue, or other drought tolerant turf types should be used in lieu of bluegrass, where heavy foot traffic is not anticipated.
(e)
Native seeded areas. Low intensity use areas that have been disturbed by development activities or are in need of revegetation shall be seeded to prevent erosion. Seed from native grass and herbaceous species should be used for re-vegetation where practical. Once established, native seed areas have minimal supplemental irrigation requirements.
(Ord. No. 787, § 1, 9-8-2014)
(a)
All plant materials shall be grown in accordance with proper horticultural practice. Plants shall be healthy, well-branched, vigorous stock with a growth habit normal to the species and variety and free of diseases, insects, and injuries. Plants shall conform to the most recent edition of the "American Standard for Nursery Stock," published by American Nursery and Landscape Association, for measurements, grading, branching, quality, container sizes or ball and burlapping.
(b)
Landscapes shall consist of a variety of species to enhance biodiversity. No one (1) species, within each category as provided below, may make up more than twenty-five percent (25%) of the total non-turf plant materials on the site.
(c)
Landscape categories and minimum installed plant size requirements:
(1)
Shade trees: two-inch caliper.
(2)
Ornamental trees: one and one-half-inch caliper.
(3)
Evergreen trees: six (6) feet height.
(4)
Shrubs: five-gallon container.
(5)
Ornamental grasses: one-gallon container.
(6)
Groundcover and perennial plants: four-inch container.
(d)
Turf variety and planting methods (sod or seed) shall be clearly noted on the plans. If any proposed public right-of-way planting is to be transferred to the City, a low-water sod variety shall be specified for any turf areas.
(e)
Seeded areas. Unless otherwise approved by the City, all areas disturbed by construction shall be reseeded to stabilize soil and prevent erosion. Native, noninvasive grasses should be used for revegetation where practical. Weed control is the responsibility of the landowner on all reseeded areas and all preservation areas. Seed establishment will be considered successful when no bare soil is visible in any area larger than twelve (12) inches square, and weed species comprise no more than twenty percent (20%) of plant density.
(f)
Placement and spacing of all plants must accommodate the potential height and spread of the respective species and variety.
(g)
Artificial plants and synthetic turfs may not be used to meet the requirements of this Article.
(Ord. No. 787, § 1, 9-8-2014)
(a)
Existing contours and proposed alterations to landscape elevations shall be clearly indicated on landscape plans. Grading shall take into consideration historical drainage pathways and other site-specific elements. Drainage onto adjacent properties may not be altered without administrative approval, upon a showing that an easement has been provided by the adjoining property owner for this purpose.
(b)
Maximum slope requirements. Slopes should not exceed three to one (3:1) without structural stabilization. Erosion control shall be specified for all slopes exceeding four to one (4:1). Soil surface on all slopes should be stabilized and mulched or re-vegetated.
(c)
Berms shall be incorporated into the overall site grading and drainage. Maximum slope for berms is three to one (3:1). High water use turf should not be used on steep slopes. Low-water seed mixes, shrubs, grasses, and groundcover plantings are appropriate berm planting treatments.
(Ord. No. 787, § 1, 9-8-2014)
(a)
Tree setbacks for underground utilities. Trees shall be planted a minimum of ten (10) feet from all pressurized utilities. Separation of at least six (6) feet is required for all other buried utilities.
(b)
Tree planting under overhead utility lines. No trees shall be planted under overhead utility lines that will reach a mature height of over thirty (30) feet. Where requirements call for shade trees spaced at one (1) per forty (40) feet, ornamental trees may be substituted spaced at one (1) per thirty (30) feet. Trees that will reach a mature height of over thirty (30) feet shall be placed at least twenty (20) feet horizontally from overhead lines.
(c)
Fire hydrants. No tree trunk or vegetation over twelve (12) inches [in] height is permitted to grow within five (5) feet of a fire hydrant. The five-foot radius shall be clearly indicated on plans.
(d)
Street lights. Shade trees shall be placed at least twenty (20) feet from street lights. Ornamental trees shall be placed at least ten (10) feet from street lights.
(Ord. No. 787, § 1, 9-8-2014)
Landscaping at street intersections shall comply with the City's site visibility and corner visibility triangle requirements. Landscaping at maturity shall reach no more than thirty-six (36) inches [in] height above the adjacent street levels when located in a sight visibility triangle at street intersections. Tree trunks may be allowed provided all limbs and foliage are a minimum of eight (8) feet above finish grade. Refer to City of Dacono Standards for Public Improvements for triangle requirements.
(Ord. No. 787, § 1, 9-8-2014)
Landscape designs shall provide innovative and effective landscaping of water management features. Landscaping associated with storm water facilities shall be integrated into the overall design of the project, and shall enhance the overall appearance of the project, promote infiltration, prevent erosion, and improve water quality whenever possible.
(1)
The use of permeable paving, planting strips, and shallow landscaped depressions in parking lots and along roads is encouraged to help trap and remove pollutants from storm water runoff.
(2)
All facilities shall be planted or seeded with plant species appropriate to the function of the area. Areas to be used for active recreation may be seeded with turf-type native grass species and irrigated with a permanent irrigation system. Habitat and water quality enhancement, including wetland plantings in low wet areas, is encouraged. Areas to be maintained for habitat enhancement shall be planted or seeded with appropriate, noninvasive native plant species. The landowner is responsible for establishment and maintenance of healthy, weed-free vegetation.
(3)
Trees may be planted at the top and on the side slopes of storm water facilities, but not in the bottom. Ensure the required spacing of trees from all storm water lines and facilities.
(Ord. No. 787, § 1, 9-8-2014)
(a)
Minimum percent of landscaped area. The total landscaped area of all proposed development parcels shall comprise a minimum of twenty percent (20%) of the total site area within the property lines. This area may not include building footprints or the hard surface or landscaped areas of parking lots or driveways. However, it can include sidewalks and other pedestrian paths not located within the parking lot, outdoor plazas, water features, and any required landscaped setbacks and/or buffers. This requirement is cumulative for all site categories excluding the parking lot landscape percentage requirement. Credit will be considered for areas with existing vegetation. These areas, if protected throughout construction, may be credited toward the overall landscaped percentage as approved by staff. Landscaped area must include a minimum of seventy-five percent (75%) living material based on mature plant sizes within three (3) years of planting. Tree canopy does not count towards the landscape coverage requirement.
(b)
Landscape setbacks. The required width of the landscape setback is determined by the classification of the adjacent street right-of-way as designated by the City, and is measured from the property line. These minimum setback widths, exclusive of the adjacent street right-of-way, are as follows:
(1)
The minimum landscape setback along the existing I-25 and State Highway 52 corridors, and their associated frontage roads, shall be fifty (50) feet. That portion of a lot in any zone district which abuts the I-25 or State Highway 52 right-of-way shall be landscaped with a minimum of one (1) shade tree, or one (1) evergreen tree, for every twenty-five (25) linear feet of street frontage.
a.
For development adjacent to I-25, a berm should be constructed to a height sufficient to screen elements of the development that lie along the ground plane (parking lots, storage areas or other similar site elements). Such berms shall have maximum side slopes of three to one (3:1). The maximum berm height shall be six (6) feet above the existing elevation at the foot of the proposed berm. If additional height of screening is necessary above the six-foot berm, it shall be achieved through dense landscape plantings. A berm may not be required if the subject property is elevated above the roadway and it can be demonstrated that views into the site will not be possible.
(2)
Adjacent to primary roadway corridors, the landscape setback shall be at least thirty (30) feet wide. The existing primary roadway corridors include Colorado Boulevard (Weld County Road 13), Summit Boulevard (Weld County Road 8), and Graden Boulevard (Weld County Road 12). That portion of a lot in any zone district which abuts a primary roadway corridor right-of-way shall be landscaped with a minimum of one (1) shade tree, or one (1) evergreen tree, for every thirty (30) linear feet of street frontage.
(3)
Adjacent to any secondary roadway corridors, the landscape setback shall be at least twenty-five (25) feet wide. Secondary roadway corridors include Glen Creighton Drive, York Street (Weld County Road 11), and Holly Street (Weld County Road 15). That portion of a lot in any zone district which abuts a secondary roadway corridor right-of-way shall be landscaped with a minimum of one (1) shade tree or one (1) evergreen tree for every forty (40) linear feet of street frontage.
(4)
Adjacent to all other roadway corridors not mentioned above, the landscape setback shall be at least fifteen (15) feet wide. That portion of a lot in any zone district which abuts a non-primary or secondary corridor right-of-way shall be landscaped with a minimum of one (1) shade tree, or one (1) evergreen tree, for every forty (40) linear feet of street frontage.
(5)
For each of the above categories, shrubs shall be provided at a rate of ten (10) shrubs for every required setback tree, and incorporated into landscape beds occurring within the landscape setback.
(6)
Where subdivision lots are approved as part of a development plan, landscaping of the required streetscape right-of-way shall be the responsibility of the developer, including an irrigation system, and sidewalk. Subdivision street frontage rights-of-way shall be landscaped with a minimum of one (1) shade tree for every forty (40) linear feet of street frontage. Maintenance and ownership shall be noted in the recorded covenants and on the subdivision plat. Public areas or areas dedicated to the City shall conform to the standards listed herein.
(7)
Up to twenty-five percent (25%) of the required setback or streetscape trees may be substituted with shrubs and/or ornamental grasses.
a.
Ten (10) shrubs with a minimum container size of five (5) gallons each shall be provided for each tree that is replaced.
b.
Two (2) ornamental grass clumps with a minimum container size of one (1) gallon may replace each shrub.
(8)
The required setback trees may be located in a landscaped setback for which the depth provided is greater than the minimum required depth; however, the required trees shall be located within fifty (50) feet of the property line adjacent to the street.
(9)
The required landscaped setback streetscape trees and landscaping may be located in the adjacent public right-of-way, provided:
a.
The City standards for street trees are met in the case of a City street;
b.
The Colorado Department of Transportation (CDOT) District Engineer approves the trees in the case of a State highway; and,
c.
No conflicts exist with utility easements, drainage facilities, or easements.
(10)
Public sidewalks may be permitted in a required landscaped setback if additional landscaping is provided to adequately compensate for the area of the sidewalk.
(11)
The landscape setback may be approved at less than required depth on up to one-half (½) of the street frontage if the average depth of the landscaped setback complies with the required depth.
(12)
Other roadway corridors may be designated primary or secondary corridors in future transportation planning efforts.
(13)
Plantings along primary and secondary roadway corridor rights-of-way should be integrated with the landscaping of the adjacent development. Tree plantings should be clustered or grouped along the landscaped setback to avoid a straight line of trees, unless appropriate. The effectiveness of the screening shall be increased by planting trees and shrubs in layered beds of two (2) or more rows of plant materials, rather than a single row. A mix of coniferous and deciduous trees and shrubs shall be planted in clusters or groupings. Trees may be grouped with a maximum distance of one hundred (100) feet between trees or groupings, with exceptions made at entrance drives.
(14)
Walls and fences. Walls and fences are permitted, provided they complement the architectural components of the site, are sufficiently low or open to permit views for security and safety, and any opaque portion does not exceed a height of three (3) feet above grade at the base of the wall. Opaque walls and fences higher than three (3) feet (such as noise barriers) must be located outside of the landscaped setback to maintain a landscaped appearance along the street.
a.
Walls and fences shall be contextual to the development. Material colors, types, etc. shall be provided on the plans. No wall or fence shall have an uninterrupted length of over forty (40) feet without a defining feature, such as columns. Large fences and walls shall be softened by plant materials as applicable.
(c)
Parking lot landscaping standards.
(1)
The measured parking lot area includes the paved area and curbs. Measured parking lot area excludes roadways and aisles leading to and from the parking lot to a public or private street.
(2)
For all parking lots consisting of ten (10) or more spaces, a minimum of ten percent (10%) of the total area designated as parking must be landscaped. This ten percent (10%) is in addition to the twenty percent (20%) of the entire lot area that must be landscaped. At least seventy-five percent (75%) of the required landscape area shall consist of living plant material, based on mature plant sizes within three (3) years of planting. Tree canopy does not count towards the landscape coverage percentage.
(3)
Parking islands shall be provided for every fifteen (15) contiguous parking spaces. Islands shall measure a minimum of ten (10) feet in width from back of curb to back of curb shall contain a minimum of one hundred fifty (150) square feet.
(4)
At least one (1) tree must be planted for every two hundred (200) square feet of interior parking lot landscaped area. At least seventy-five percent (75%) of the required trees must be shade trees. Shade tree plantings shall be within or adjacent to the parking lot, clustered, or planted singly in planters, tree islands at the end of parking bays, in medians, between rows of cars, or as part of a continuous landscape strip. Trees may not be planted closer than three (3) feet from the back of any curb. Required trees must be planted within eight (8) feet of a paved motor vehicle lot. Shrub placement should accommodate the potential overhang of vehicle bumpers into planting beds.
(5)
At least seventy-five percent (75%) of the length of the frontage of the parking lot must be screened with a combination of plants and berms that reach at least three (3) feet height at maturity. The width of intersecting driveways shall not be included in the calculation. Screening shall consist of at least fifty percent (50%) evergreen material. Berms shall have smooth transitions from the top of the curb to the setback line, and should not impede site drainage or create snow traps.
(6)
Where motor vehicle lot soil has been compacted by grading operations, the soil of any planter within the lot shall be structurally renovated (tilled) or removed to a depth of twenty (20) inches and replaced with an acceptable growing medium for the species indicated for installation.
(d)
Internal landscape standards.
(1)
Minimum internal landscaping area: Five percent (5%) of the site's net area (site's area excluding adjacent public street rights-of-way). This calculation shall exclude parking lot landscape requirements and any required setbacks and/or buffers, but may be included in the twenty percent (20%) overall landscaped area requirement.
(2)
Minimum number of trees: One (1) tree for every five hundred (500) square feet of the required minimum internal landscaping area.
(3)
Up to fifty percent (50%) of the required internal trees may be substituted by shrubs.
(4)
Shrub substitutes for trees are allowed at a ratio of ten (10) shrubs, with a container size of five (5) gallons, for one (1) tree. Shrub bed area for each substitute shrub shall be at least fifteen (15) square feet. Ornamental grass substitutes for shrubs are allowed at a ratio of two (2) plants, with a container size of one (1) gallon, for one (1) shrub.
(5)
That portion of a landscape setback in excess of the minimum depth may be credited toward the required internal landscaping.
(6)
Setback distances from buildings shall allow for mature growth of trees. Tree limbs shall have a minimum of six (6) feet clearance over pedestrian walkways. Vegetation planted adjacent to buildings shall be offset from the foundation wall at least one-half (½) of the typical spread for the species, plus one (1) additional foot. Any planting area adjacent to a building shall be a minimum of three (3) feet wide in any direction. Plaza planters shall provide an area of at least one hundred fifty (150) square feet for each tree.
(e)
Buffer and screening standards. Whenever the use of a property to be developed or redeveloped will conflict with the reasonable use of an adjoining property, a buffer zone shall be provided between the two (2) uses. The buffer may be accomplished through the use of a combination of planting, berms and fencing. However, in no event shall a fence be the only screening material used. The buffer shall moderate the impact of noise, light, unattractive visual elements and traffic.
(1)
High-intensity land uses, such as commercial, retail, mixed-use, parking lots, or industrial, shall be screened from the adjacent low-intensity uses, including residential multifamily, mixed-use, and educational. A fifteen-foot wide buffer, where feasible, shall be provided along the property lines of all high-intensity uses, and shall contain dense screening plant materials. One (1) tree and five (5) shrubs shall be provided for every twenty-five (25) feet of linear buffer. At least seventy-five percent (75%) of the length of the frontage, excepting all drives, must be screened with plants that reach at least six (6) feet height at maturity. Screening plants shall consist of at least fifty percent (50%) evergreen material. In the event that both setback and buffer requirements apply to a single frontage, the stricter requirement shall be implemented.
(2)
Loading, service, and storage areas visible from the public right-of-way or adjacent properties must be screened with an opaque screen that is an integral part of the building architecture or landscape design. Screening may be achieved with landscaping, berms, boulders, fencing or a combination of elements. Chain link fencing with slats, tires, or used building materials are not acceptable screening. At least seventy-five percent (75%) of the length of the frontage, excepting drives, must be screened with plants that reach at least six (6) feet height at maturity. Screening plants shall consist of at least fifty percent (50%) evergreen material.
(3)
Trash collection and recycling areas and service and loading areas shall be screened on all sides so that no portion of such areas is visible from public streets and adjacent properties. Required screening may include new and existing plantings, walls, fences, screen panels, doors, berms, buildings, or any combination thereof.
(Ord. No. 787, § 1, 9-8-2014)
(a)
Permanent irrigation systems are not required for landscaped areas, including pots and planters that are cumulatively less than five hundred (500) square feet. Landscaped areas larger than five hundred (500) square feet shall have a permanent, water efficient irrigation system that provides full coverage to all plant materials. Unless otherwise approved, this irrigation shall be an automatic irrigation system.
(1)
The maximum annual water allowance is fifteen (15) inches of supplemental irrigation applied to the total landscaped area. Plants of any water need may be used in the landscape, providing the total annual water use does not exceed the water allowance. The annual supplemental water allowance for active recreation areas, such as sports fields, schools and parks, may be increased to twenty (20) inches. This requirement may be waived during construction and for the first six (6) weeks after completion of installation to allow for successful establishment of plants.
(2)
Temporary establishment and permanent irrigation methods, as well as timing and application rate, shall be indicated on irrigation plans. Plans shall identify application rates, as well as monthly and annual water demand totals. Seasonal application rates shall be consistent with plant water needs.
(3)
The irrigation system shall be designed to provide peak season irrigation within a three-night per week watering period. Watering must occur between 8:00 p.m. and 8:00 a.m. the following day. Tap sizes and all zone flow rates must be adequate to accomplish necessary watering within this time frame.
(4)
Site water pressure shall be identified by the City Engineer prior to irrigation system design and shall be noted on irrigation plans. Actual on-site pressure may vary based on water system demand at the time of the pressure test, subsequent development placing additional demand on the water system, and other factors. Irrigation system design shall provide flexibility to accommodate variations in pressure conditions.
(5)
Irrigation systems may be served through a combined tap with the building, or from a dedicated irrigation tap. A backflow preventer shall be provided on all systems. Where the irrigation point of connection is from the domestic water service, the irrigation tap and backflow preventer shall be installed after the water meter but before any backflow or pressure-reducing valve for the building. The irrigation service line shall be the same size as the tap from the City water main for at least ten (10) pipe diameters downstream of the meter.
(6)
The mainline system shall be designed such that velocities within the mainline piping do not exceed five (5) feet per second. Maximum velocity shall not exceed seven and one-half (7½) feet per second through the service connection. A shut off valve with drain, or stop and waste, is required downstream of the meter.
(7)
No main or lateral supply lines or sprinkler heads may be located within five (5) feet of a building foundation wall, though drip emitters may be extended to plants in these areas. Sprinkler heads should be located a minimum of four (4) inches from walks and other paced surfaces.
(8)
Moisture sensors and smart controllers. At least one (1) water conservation device, such as a moisture sensor, rain shutoff device, weather station, or smart controller, is required. Smart controllers with a master valve and a flow sensor are strongly encouraged, especially for large systems.
(9)
Irrigation shall be hydrozoned, grouping plants with similar water needs by irrigation zone. Generally, trees, shrubs, perennials, and groundcovers should be irrigated with drip irrigation. Drip irrigation should be used for all shrubs, perennial and groundcover beds, with micro-sprays being acceptable only for large groundcover areas. Turf areas should be watered separately from planting beds, shrubs and trees. Turf shall be watered using fixed or rotary nozzles with check valves and pressure regulation or compensation. Areas seeded with low-water native grasses do not require permanent irrigation. All seeded areas shall be irrigated until reasonably established or as required on approved landscape plans. Permanent sprinkler zones shall provide head to head coverage. The property owner is responsible for insuring that sprinkler heads are adjusted to minimize overspray onto paved areas and hard surfaces.
(10)
Well-planned sprinkler systems can save water when properly installed and operated. Landscaping shall be irrigated according to the condition of the plants, not on a fixed schedule. To avoid runoff, apply only as much water with each cycle as the soil can absorb. Trees, shrubs, perennials and groundcovers can be watered more efficiently with low-volume drip emitters. To promote deep rooting, water infrequently, but deeply.
(11)
Overhead irrigation is not recommended in areas with slopes greater than four to one (4:1).
(12)
Water shall not be applied to impervious surfaces. The irrigation system shall be designed to eliminate run-off from landscaped areas and shall not damage street, sidewalk, or utility infrastructure.
(13)
Installation of irrigation system shall be consistent with approved plans, and meet City standards and criteria prior to issuance of certificate of occupancy.
(14)
As-built plans, clearly demonstrating any deviations from the approved irrigation plans, shall be provided to the City upon request.
(Ord. No. 787, § 1, 9-8-2014)
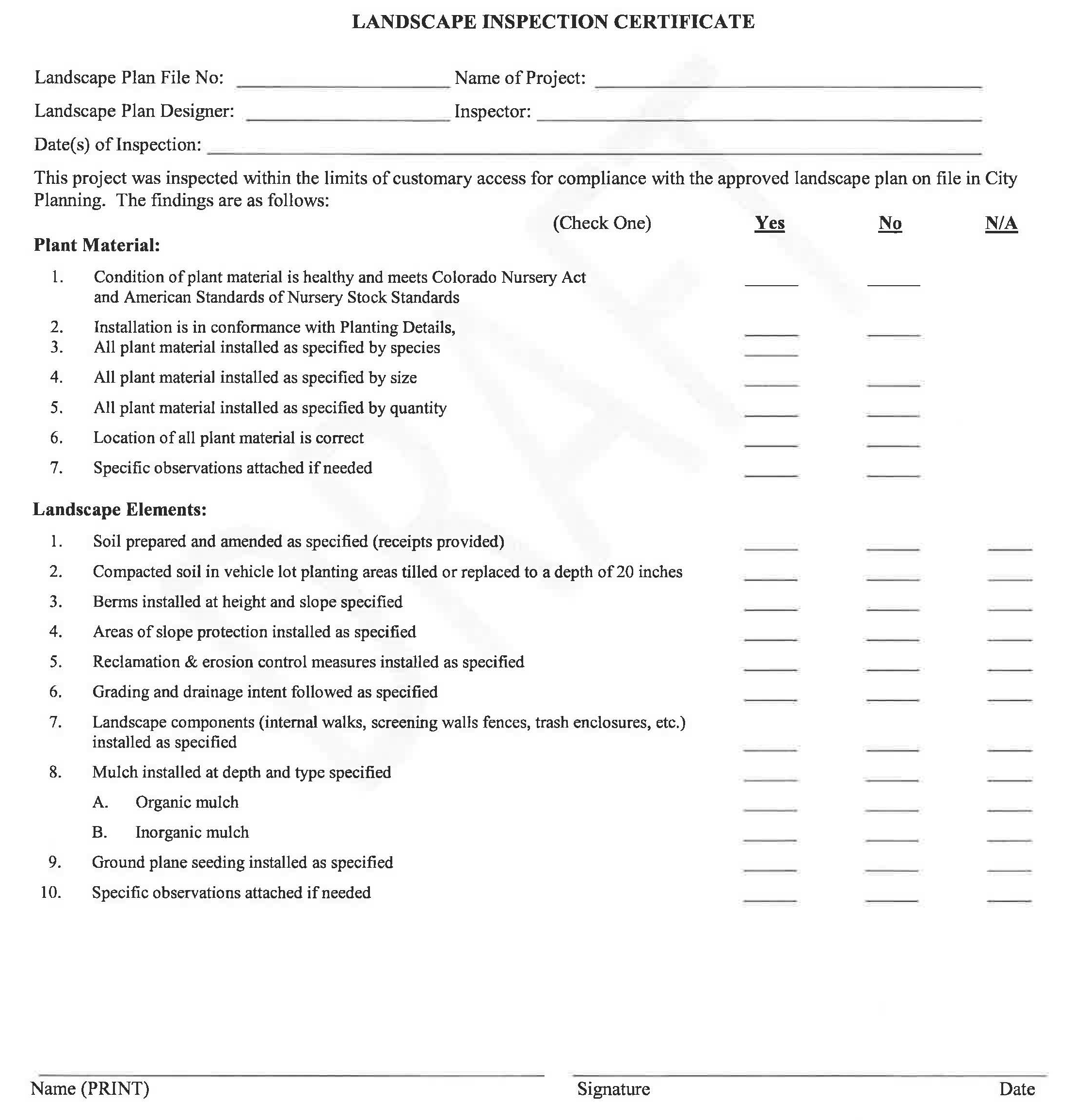
Upon project completion, and prior to probationary acceptance, a final site inspection shall be conducted by the City. Inspection, warranty period and final acceptance shall be in accordance with the City's improvement guarantee standards set forth in Article 15 of Chapter 17 of this Code.
(Ord. No. 787, § 1, 9-8-2014)
Installation of landscaping and irrigation shall be in accordance with the approved plans. Any deviations from the approved plans, including any substitutions of approved plant materials, shall be approved by the City prior to installation and shown in a set of as-built plans prepared upon completion. The City may reject any deviations from the approved plans that it determines are not in compliance with the requirements set forth in this Article.
(Ord. No. 787, § 1, 9-8-2014)
(a)
Notes detailing the responsible parties and practices for future maintenance shall be placed on the landscape plans.
(b)
Irrigation system shall be maintained to perform as designed, including distribution uniformity, allowing maximum absorption and eliminating run-off. Landscaping shall be watered according to plant needs and current soil moisture conditions, not on a rigid schedule.
(c)
All required landscaping for regulated landscapes shall be maintained and replaced by the landowner as necessary to maintain the intent of the approved plans. Plant materials exhibiting evidence of insect or disease infestation or other damage shall be appropriately treated. Dead plant material shall be removed and replaced. All landscape areas shall be maintained free of invasive species and noxious weeds.
(d)
Mulch materials that no longer cover the area where originally deposited shall be regularly replenished to maintain the full coverage to a minimum depth of two (2) inches for rock mulches, three (3) inches for organic mulch.
(e)
Unless the landscape improvements were installed by the City, current and future landowners shall be responsible for maintenance of landscaping within the portion of the public right-of-way between the back of the curb or street pavement and the adjacent property.
(Ord. No. 787, § 1, 9-8-2014)
Appendix A
Appendix B
Appendix C
Appendix D
Appendix E
Appendix F
Appendix G
Appendix H
(Ord. No. 787, § 1, 9-8-2014)
Landscape Design Standards
(a)
The purpose of the landscape design standards is to establish requirements and guidelines for the design, installation, and maintenance of landscapes within the City of Dacono. The intent is to safeguard public health, safety, and welfare, to enhance environmental, economic, aesthetic and recreational resources, and to promote water conservation.
(b)
Well-designed landscaping enhances development and helps maintain the quality of life in the community. Trees, shrubs, and other plantings improve aesthetic appeal and property values. Well-designed landscapes provide vital community services, such as enhancing soil quality, reducing runoff, erosion and sedimentation, moderating temperatures, buffering noise and diverting winds. As no single landscaping plan can be prescribed for all developments due to differing land features, topography and soils, these guidelines encourage flexible and creative landscape design solutions.
(c)
All landscape plans shall promote public safety, sustainable development and water conservation. This includes: design for optimum site accessibility and visibility, as well as safe pedestrian and traffic circulation; fire mitigation; reduction of heating and cooling requirements; shading of large parking and paved areas; reduction of air, water, light, and noise pollution; enhancement of outdoor recreational opportunities; protection of endangered and significant vegetation, soils and wildlife habitat; prevention of invasive species; and reduction of potable water consumption.
(d)
Landscape design should be sensitive to the characteristics and maintenance requirements of the plants selected. Plant species should be selected that are hardy and adapted to the climate and soil conditions in the area.
(e)
All improvements should reflect the context of the area and the region as a whole as well as the people who will use the spaces. The character of this area is defined by the views of the front range and large, open expanses of undeveloped land. Development within this area should strive to fit into this environment while creating aesthetically pleasing, functional and environmentally sensitive places.
(Ord. No. 787, § 1, 9-8-2014)
(a)
These landscaping standards (and landscape plan review) shall apply to all public and private land located within the City, and shall apply to:
(1)
All new development and redevelopment of buildings and land, including applications for property of any size in commercial and industrial zone districts;
(2)
All planned unit development (PUD) applications; and
(3)
Residential subdivisions (streetscapes, hardscapes, open space, parks, homeowner association property).
(b)
Exemptions. These standards do not apply to the following land uses:
(1)
Single-family detached and multi-family residential properties of four (4) or fewer units not including common areas.
(2)
Verified agricultural activity;
(3)
A development or redevelopment project that cumulatively increases the gross floor area of a lot by less than fifty percent (50%) of the existing floor area, or modifies the total site area by less than thirty-five percent (35%).
(Ord. No. 787, § 1, 9-8-2014)
As used in this Article, the following words and terms shall have the following meanings, unless context clearly indicates otherwise:
Adapted plant means a plant that is not indigenous, or native, to Colorado, but is used in landscaping due to its adaptable qualities. It may be a nursery trade cultivar or variety; or a native to the region that does not naturally occur in the City limits.
As-built plans means plans reflecting the actual conditions of a landscape or irrigation system installation.
Backflow preventer means a mechanical device installed at the beginning of the irrigation system to prevent a reverse water flow and contamination of the potable water supply.
Berm means an earthen mound designed to provide visual interest, screen undesirable views, and/or decrease noise. To promote efficient irrigation and maintenance measures, berms shall not exceed a slope of three (3) horizontal units to one (1) vertical unit and shall be graded to appear as smooth, rounded, naturalistic forms.
Caliper means the measurement in diameter of a tree trunk measured six (6) inches above the ground for trees up to four (4) inch size and twelve (12) inches above the ground for larger sizes.
Canopy (also known as overstory) means the upper vegetative cover of a tree or plant grouping.
Certified Irrigation Designer means a person who has completed the Certified Irrigation Designer Program of the Irrigation Association.
Compost means a mixture of decayed plants and other organic matter used to improve soil structure and provide nutrients.
Control valve means valves that turn on and off water to the individual zones of sprinklers or drip emitters.
Controller means an electric timing device that operates each zone of an irrigation system for a predetermined time and frequency.
Coverage means the extent of area where water is applied by sprinkler heads. This is used in the context of proper head spacing. Head to head coverage is sprinkler head spacing that matches the spray radius of the sprinkler.
Critical root zone means the ground area around a tree trunk determined by a radius of one (1) foot for each one (1) inch of trunk diameter.
Deciduous means a plant with foliage that is shed annually.
Developed lot means platted land with all adjacent public improvements installed but does not include any buildings or structures.
Development means any lot or parcel on which a site improvement or change is made including buildings, landscaping, parking, streets and/or utilities.
Drip line means the area defined by the outermost circumference of a tree canopy from where water drips onto the ground.
Easement means a right granted by a property owner permitting a designated part or interest of the property to be used by others for a specific use or purpose.
Engineer means a professional engineer licensed in the State of Colorado.
Evapotranspiration (ET) means a measure of water depletion from the soil due to evaporation from the soil surface and transpiration through plant foliage.
Evergreen means a tree or shrub with foliage that persists and remains green year around.
Final grade means the finished ground surface level or contour after grading, construction, and soil preparation for plants.
Flow sensor means a device that measures the rate of water flow in an irrigation system quantified in gallons per minute (GPM).
Gallons per minute (GPM) means measurement of the flow rate, or volume, of water in one (1) minute.
Genus means a closely related and definable group of plants comprising one (1) or more species.
Ground cover means plants other than turf grass, normally reaching an average maximum height of not more than twenty-four (24) inches at maturity.
Hardscape means any non-living materials or structural site improvements, that may include, buildings, paving, walkways, walls, fences, arbors, patios, site furnishings, decorative rock, stones, and similar materials.
High-water-use turf means turfgrass that has an exceptionally high water requirement to prevent dormancy, typically twenty (20) inches of supplemental irrigation during each annual growing season.
Hydrozone means a portion of a landscape area having plants with similar water needs that are either not irrigated or irrigated and grouped by a circuit or circuits with the same watering schedule.
Hydrozoning means the design practice of grouping plants by similar water requirements to maximize potential efficiency of irrigation.
Invasive plant species. Invasive plants are introduced species that can thrive in areas beyond their natural range of dispersal. These plants are characteristically adaptable, aggressive, and have a high reproductive capacity. Their vigor combined with a lack of natural enemies often leads to outbreak populations, displacement of native plants, and dominance of native plant communities. Also, any plant species listed by the U.S. Department of Agriculture as a noxious weed in the State of Colorado is considered an invasive plant species.
Irrigation system means an overall system of various components, including pipelines, sprayers, bubblers, drip emitters and other materials, including timers, designed, and installed to ensure that all landscaped areas and plant materials are adequately watered on a regular basis. An irrigation system shall include a backflow prevention device. "Irrigation system" does not include the use of portable sprinklers, hoses, or hand watering.
Landscape buffer means a land area with landscape plantings and other components used to visibly separate one (1) use from another or to shield or block noise, lights, or other nuisances.
Landscape grading plan means a plan drawn to scale that shows the designed landscape gradient and elevation using contour lines or numeric notation of elevations.
Landscape setback means an area adjacent to street rights-of-way, and along the non-street boundaries reserved for the primary use of landscaping. The landscape setback extends from the property line into the private property. Landscape setback distance is determined by the classification of the adjacent street right-of-way as designated by the City.
Landscaping means the planting and continuous maintenance of a combination of trees, shrubs, vines, groundcovers, flowers, native vegetation, and turf on the land. Landscaping includes the installation of various decorative features, such as benches, water features, and artwork, and the use of hardscape as part of an overall design.
Licensed Architect means a person who is currently licensed by the State of Colorado to practice the profession of architecture.
Licensed Landscape Architect means a person who is currently licensed by the State of Colorado to practice the profession of landscape architecture.
Licensed Professional Engineer means a person who is currently licensed by the State of Colorado to practice the profession of engineering.
Living landscape materials means living trees, shrubs, vines, flowers, grasses, lawn and ground covers.
Low-water-use plants means plants that require less than thirty percent (30%) of reference evapotranspiration to maintain optimum appearance.
Maintenance means any activity undertaken to prevent the deterioration, impairment, or need for repair of an area, structure, right-of-way, or land use, including but not limited to management, repair or replanting of plant materials, landscape materials, and/or irrigation system.
Microclimate means the climate of a specific place within an area, as contrasted to the entire area, due to physiographic variations.
Native plant means a species that is indigenous within the region or State and naturally occurring in one (1) or more plant communities.
Nonliving landscape materials means materials, other than plants, used in the landscape, including crushed rock, sand, wood chips, outdoor furniture, ornamental pieces, and structural features.
Ornamental tree means a small deciduous tree, twenty-five (25) feet or less in height at maturity, planted primarily for its ornamental value such as flowers, leaf color, size or shape.
Parking lot island means a landscaped area, protected by standard curb, and typically surrounded on at least two (2) sides by parking spaces or a driveway aisle.
Parking lot tree means a shade tree that is planted in a designated area within a parking lot.
Parkway means that portion of the public street right-of-way typically located between the curb and private property line for which the adjacent property owner has a legal responsibility to maintain for the public good.
Perennial means a herbaceous plant species that lives for more than two (2) years. A short-lived perennial lives for approximately three (3) to five (5) years. Long-lived perennials live for approximately five (5) to twenty (20) years.
Plant community means a natural association of vegetation that is dominated by one (1) or more prominent species, or has a characteristic physical attribute.
Plant materials means trees, shrubs, vines, groundcovers, flowers and grass.
Practical turf areas means a landscape design and management concept promoting turf only in those areas of the landscape that are functional, and the efficient management of supplemental irrigation required in those areas.
Pressure or(PSI) means the force that moves water through a pipe or piping system and is measured in pounds per square inch (PSI) or feet of head. One (1) foot of water depth equals 0.433 PSI, and one (1) PSI equals 2.31 feet of head.
Public right-of-way means that area between the property line and the edge of asphalt, or back of curb associated with a public road.
Rain sensor or rain shutoff device means a device connected to an irrigation controller that overrides scheduled irrigation when significant precipitation has been detected.
Reference evapotranspiration means the evapotranspiration of a broad expanse of well-watered, four- to six-inch tall cool season grass.
Restrictive covenant means a limitation of the use of land usually set forth in the deed or other recorded instrument.
Screen means a method of reducing the impact of noise and unsightly visual intrusions with less offensive or more harmonious elements such as plants, berms, fences, walls, or any appropriate combination thereof.
Shade tree means a deciduous tree exceeding twenty-five (25) feet in height at maturity.
Shrub means a self-supporting woody perennial plant, evergreen or deciduous, of low to medium height characterized by multiple stems and branches continuous from the base, typically not more than twelve (12) feet in height at its maturity.
Site plan means a two-dimensional representation, drawn to scale, of the total area of a development project, including building footprints, roadways, and parking areas.
Site visibility triangle means the minimum visibility clearance provided at all access point locations, intersection of adjoining streets, and entrance drives. Landscape type, height, and opacity are limited in these areas. Refer to City of Dacono Standards for the Design and Construction of Public Improvements for triangle requirements.
Smart controller means irrigation controllers that automatically update the watering schedule and application rates to allow for changes in real-time water needs throughout the irrigation season. Smart controllers are typically either climatologically and/or soil moisture sensor based.
Soil amendment means organic and inorganic materials added to soil to improve texture, nutrients, moisture holding capacity, microorganism activity, and infiltration rates.
Street right-of-way means the area of land designated for streets, sidewalks, utilities, and public use.
Street tree means a tree planted in the street right-of-way between the curb or edge of road and the adjoining property line (the parkway) to provide shade, spatial definition, and human scale, and to enhance the street environment.
Streetscape means the landscape treatment of a street edge, including vegetation, sidewalks, streetlights, fencing, signs, utilities, etc.
Subdivision means the division of a lot, tract or parcel of land into two (2) or more lots, tracts or parcels, or other division of land in compliance with City requirements.
Texas hybrid bluegrass means a grass hybrid that is a cross between Kentucky bluegrass and Texas bluegrass. Such hybrids demonstrate lower water use requirements than Kentucky bluegrass and are more drought tolerant.
Topsoil means native soil, which is to be stockpiled during construction activities and returned to landscaped areas, and may also refer to imported soil material where native topsoil is substandard or non-existent.
Tree means a large, woody plant having one (1) or several self-supporting stems or trunks and numerous branches. It may be classified as deciduous or evergreen.
Tree-lawn means the area between the back of curb and the detached sidewalk typically characterized by ground cover, lawn and shade trees, also referred to as a parkway.
Turf/turfgrass means a continuous plant coverage consisting of hybridized grasses that, when regularly mowed, form a dense growth of leaf blades and roots.
Vegetation means living plants, or the sum total of plant life within an area.
Velocity means the rate of water flow calculated in feet per second (FPS).
Water allowance/water budget means the maximum annual allowed volume of water, measured in inches, used for landscape irrigation for a landscaped area.
Weather station means, used in conjunction with the irrigation controller, either as a single on-site weather station or from a network of stations, to automatically adjust the irrigation watering schedule according to local rainfall and moisture conditions.
Xeriscape means a water efficient landscape adapted to the local environment.
Xeriscape principles means methods of professional landscaping for water conservation that include: planning and design, soil analysis, efficient irrigation, appropriate plant selection, practical turf areas, use of mulches, and proper maintenance.
(Ord. No. 787, § 1, 9-8-2014)
(a)
Landscape design. Colorado State law governs the sizes and types of projects that unlicensed individuals can design. With the exception of residential landscape design, consisting of landscape design services for single- and multi-family residential properties of four (4) or fewer units not including common areas, all projects shall be prepared by a Licensed Landscape Architect.
(b)
Irrigation design. To be qualified as an Irrigation Design Professional, a designer must certify that they are qualified to prepare the type of plan(s) that they submit by providing professional qualifications that are possessed. Acceptable professional qualifications include:
(1)
Licensed Landscape Architect.
(2)
Licensed Architect.
(3)
Licensed Professional Engineer.
(4)
Certified Irrigation Designer (CID).
(c)
Verification of licensure or certification, as applicable, will be required at time of application for anyone preparing landscape or irrigation plans.
(Ord. No. 787, § 1, 9-8-2014)
(a)
Landscape plan. All applications for preliminary plat, final plat and planned unit development plans shall be accompanied by an appropriate landscape plan. Applicants should reference the provided landscape checklist in addition to the outlined requirements. Plans may require additional information based on the nature of the application, as determined by the Community Development Director. A completed landscape checklist shall also be submitted with the initial landscape plan.
(b)
Landscape plan submittals shall include the following minimum requirements:
(1)
Plans shall be drawn to scale, not to exceed one inch equals thirty feet (1" = 30'), except for overall plans when enlargements of one inch equals thirty feet (1" = 30') or less are provided for all areas.
(2)
Trees shall be shown at minimum three-fourths (¾) of their mature size. Shrubs, ornamental grasses, perennials and groundcover symbols shall be shown at mature size. Show all areas to be covered with turf, seed mixes and mulches. All plants shall be labeled with full name, key or indicated with a legible symbol unique to each plant variety.
(3)
The plan shall include a plant schedule indicating scientific and common names, quantities or square footage, and installed sizes. Include square footage of all organic and inorganic mulch.
(4)
All plans shall include the designer's name, contact information and State license number or stamp and show the following:
a.
All structures and hardscape elements, both proposed and to remain (buildings, fences, retaining walls, decks, gazebos/patios, pavements, parking areas, curbs, sidewalks, and other structural features);
b.
Dimensions of property lines, easements, buffers and setbacks;
c.
Grading contours and critical elevations;
d.
Existing and proposed overhead and underground utilities;
e.
Street names and adjacent land uses;
f.
North arrow and graphic scale;
g.
All significant natural areas, wildlife habitat, wetland areas, existing vegetation, and all existing trees two-inch caliper or greater in size;
h.
Site distance triangles;
i.
Planting details and notes;
j.
Limits of disturbance boundary for development activities;
k.
Areas designated for stockpiling of topsoil during construction;
l.
Areas designated for snow storage, if applicable;
m.
Land use table showing total percentage of landscaped area, and specific site category requirements; and
n.
Any other information that may reasonably be requested by the Community Development Director.
(c)
Irrigation plan. All landscaping required by this Article shall be irrigated with a permanent irrigation system as necessary for plant establishment and maintenance. Irrigation shall be appropriate to the type and scope of the improvements. Temporary irrigation may only be used to establish native grasses and low-water vegetation. Irrigation plans may be submitted concurrent with the landscape plans. An irrigation plan checklist is required with the initial landscape plan submittal.
(d)
Irrigation plans shall include the following minimum requirements:
(1)
Plans shall be based on the landscape plans and include the landscape plan requirements. Plants and plant areas may be shown either with a lighter gray tone, or not shown.
(2)
Irrigation plan shall show location and type of sprinkler heads, drip areas, valves, piping, water meter, point of connection, backflow device, controllers, and all other major components.
(3)
Irrigation legend/schedule shall include sizes and quantities of all major components.
(4)
Provide a zone schedule showing water flow and pressure requirements, in gallons per minute (gpm) and pounds per square inch (psi).
(5)
Critical analysis demonstrating adequate water flow and pressure from the meter to serve the zone(s) with the highest pressure loss and water flow requirement.
(e)
Any submittal with incomplete or missing information may result in the plan being returned without review. The City reserves the right to request additional information pertaining to specific landscape and irrigation plans beyond the general requirements in these standards.
(f)
The final landscape and irrigation plan shall be approved by the City prior to the construction of any landscape and irrigation improvements.
(g)
Approval is concurrent with approved subdivision or site development plan, including any extensions to such approvals as may be granted by the City Council. Cost estimates provided for the approved landscape and irrigation plans shall be valid for one (1) year from the date of City approval of the final plans; if not constructed by such date, cost estimates must be updated before the work may commence.
(Ord. No. 787, § 1, 9-8-2014)
(a)
Existing vegetation.
(1)
Conservation of existing plant communities. Buildings and parking areas should be located in a manner that will preserve existing healthy plant communities. Site design and construction techniques shall be used to minimize the impact on existing native plants and plant communities.
(2)
Endangered, unique, and/or significant vegetation and wildlife shall be protected in accordance with the federal Endangered Species Act of 1973 (16 U.S.C. 1531 et seq.), and the Colorado Nongame, Endangered, or Threatened Species Conservation Act (Section 33-2-101, C.R.S.).
(3)
Wetlands and riparian zones shall be preserved at the discretion of the City and according to all other applicable State and federal mandates and regulations.
(4)
Use of any plant species listed by the Colorado Department of Agriculture as a "Noxious Weed Species", according to the Colorado Noxious Weed Act, Sections 35-5.5-101 through 35-5.5-119, C.R.S., is prohibited. Plant materials that are discouraged include:
a.
Cotton bearing cottonwoods (Populus deltoides).
b.
Siberian and Chinese elm (Ulmus pumila/parvifolia).
c.
Tree of heaven (Ailanthus altissima).
d.
Russian olive (Eleagnus
angustifolia).
e.
Purple loosestrife (Lythrum
salicaria).
f.
Black locust (Robinia pseudoacacia).
(b)
Soils. The following soil conservation and enhancement measures shall be incorporated into the landscape design:
(1)
Minimize soil disturbance in design and construction. Limit disturbance of soils to the minimum area necessary for construction activities. Prevent vehicle and foot traffic and storage of materials or equipment in areas outside the designated development footprint.
(2)
Stockpiling topsoil. Existing topsoil should be preserved as feasible and incorporated later into site plantings. Stripping and stockpiling of indigenous soil (topsoil) shall be required during construction (except as waived by City staff). Topsoil stockpiles shall be protected from compaction, erosion, and contamination.
(3)
Compacted soils. Parking lot islands and other areas that have been previously compacted shall be thoroughly loosened and amended to a depth of twenty (20) inches. Always have underground utilities and other underground plumbing or wires located and marked prior to excavation. Deep tillage should be performed when soil moisture content is forty percent (40%) or less.
(4)
Soil test. All designs shall provide site-specific soil test results with or on the landscaping plan. This will provide specific nutrient deficiencies/surplus, soil structure characteristics, and other pertinent qualities of the on-site soil. Recommended structural and chemical or organic amendments shall be noted on plans. Soil amendment needs may be significantly reduced for native and regionally adapted plant materials.
a.
The soil analysis shall determine the organic and inorganic composition of native/indigenous soil in landscaped areas, and shall include:
1.
Soil texture.
2.
Total exchange capacity.
3.
Conductivity/salts.
4.
Organic matter.
5.
Acidity/pH.
6.
Content of nitrogen, phosphorus, potassium, zinc, iron, copper, manganese and lime.
b.
The soil analysis shall include specific nutrient recommendations based on the soil test results for the type of plant material to be grown in each landscaped area.
(5)
Soil amendments.
a.
Organic matter.
1.
Prior to plant and irrigation installation, compost shall be added as indicated by the soil test results. For turf areas apply compost at a rate of four (4) cubic yards per one thousand (1,000) square feet of permeable area. For trees, shrub and groundcover beds, and native grass areas apply compost at a rate of at least three (3) cubic yards per one thousand (1,000) square feet of permeable area. For individual trees and shrubs, in lieu of the above requirement, apply one-third ( 1/3; ) area by volume of compost to backfill mixed thoroughly in the tree or shrub pit.
2.
Compost shall be a well decomposed, stable, weed free organic matter source. It shall be derived from: agricultural, food, or industrial residuals; biosolids (treated sewage sludge); yard trimmings; source-separated or mixed solid waste. The product shall contain no substances toxic to plants and shall be reasonably free (< one percent (1%) by dry weight) of man-made foreign matter. The compost will possess no objectionable odors and shall not resemble the raw material from which it was derived. For acid loving plants, only use compost that has not received the addition of liming agents or ash by-products. In addition, compost shall conform to the compost product parameters provided by the City.
b.
Nutrients.
1.
Apply nutrients prior to soil tilling, based on specific nutrient recommendations of the soil test results for the type of plant material to be grown in each landscaped area. Reduced application may be considered for native plant areas. Organic and slow release fertilizer alternatives are encouraged.
2.
Thoroughly mix soil amendments into the upper six (6) to eight (8) inches of soil. Prepared soils shall be graded to within one-tenth ( 1/10 ) of a foot, and shall be free of rock, debris or dirt clods over three-quarter-inch diameter in size. Native seed areas may contain dirt clods up to two-inch diameter in size. A copy of all receipt(s) reflecting approved volume and types of soil amendments is required prior to final approval.
(6)
Mulches.
a.
Organic mulches include: bark, straw, leaves, wood chips, wood grindings, and pole peelings. Inorganic mulches include: rock, cobble, recycled materials, and various gravel products. Organic mulches are preferred for plants as they improve soil quality, reduce temperature extremes in the soil, help retain moisture and reduce evaporation. Both organic and inorganic mulches reduce weed growth, erosion, and provide landscape interest. Light weight organic mulch should not be used in the bottom of drainage swales or on slopes greater than four to one (4:1). Shredded mulches are recommended for high wind areas.
b.
Place mulch directly on the soil or on permeable weed control fabric. Where permeable fabric is used, insure that openings in the fabric are large enough to allow for future growth and spread of the installed plants. The use impermeable fabric or plastic beneath mulch or in planting areas is prohibited.
1.
Mulches shall be used in all planting beds and around the base of trees and other plants in turf, seeded areas and large cobble areas as practical. The characteristics of all proposed mulches shall be noted, including size, shape, color, depth, and any underlayment.
2.
All mulched areas shall be minimum three (3) inches in depth after settling. Mulches shall not be applied up to and around the base or trunk of newly installed plants.
3.
Large expanses of rock or cobble mulches are prohibited.
4.
Weed barrier fabric shall not be placed under wood organic mulches.
(7)
Erosion control shall be provided for all slopes exceeding four to one (4:1), or as required by the City. Methods such as wattle, erosion control mats, seed blankets, and other methods shall be noted and incorporated into the landscape design.
(8)
Landscape edging consisting of metal, wood, masonry, or other material shall separate mulched planting beds from turf and seeded areas.
(Ord. No. 787, § 1, 9-8-2014)
(a)
Landscape improvements shall be designed with water-efficiency as a goal. Landscape water-efficiency shall be measured by an annual water budget to facilitate water conservation. These guidelines shall apply to the design of all regulated landscapes:
(1)
Landscapes shall use the following xeriscape design principles to facilitate water conservation:
a.
Well-planned planting schemes;
b.
Appropriate turf selection to minimize the use of high-water turf;
c.
Use of organic mulch to maintain soil moisture and reduce evaporation;
d.
Zoning of plant materials according to their microclimatic needs and water requirements;
e.
Improvement of the soil with organic matter as needed;
f.
Efficient irrigation systems; and
g.
Proper maintenance and irrigation schedules.
(2)
Native, adapted and xeric plant species should be used in all landscape plans. Group plants according to similar moisture, light, and drainage needs. The use of native species should be prioritized. Regionally adapted plant species may be used provided they are not invasive. Landscape improvements shall consist of a variety of species to enhance the visual aspect as well as the functional aspect, such as shading and windbreaks, of the landscaped area.
(b)
Proper hydrozoning of plants is important for long-term plant health and sustainability. Plants should be selected and grouped based on needs determined during the planning and design and soil analysis stages.
(c)
The total amount of high water use zones on a property shall not exceed thirty-five percent (35%) of the total landscaped area.
(d)
Turf areas. Turf areas may be installed as sod or seeded. Turf shall not be installed in areas that are impractical or difficult to maintain and irrigate. This includes parkways under five (5) feet in width, slopes of four to one (4:1) or greater, and narrow or oddly shaped areas. The total area of turf should not exceed twenty-five percent (25%) of the total landscaped area. Exceptions may be allowed for uses such as sport fields and high traffic areas. Low-water varieties of turf grass are encouraged. Texas hybrid bluegrass, buffalo grass, blue grama, fescue, or other drought tolerant turf types should be used in lieu of bluegrass, where heavy foot traffic is not anticipated.
(e)
Native seeded areas. Low intensity use areas that have been disturbed by development activities or are in need of revegetation shall be seeded to prevent erosion. Seed from native grass and herbaceous species should be used for re-vegetation where practical. Once established, native seed areas have minimal supplemental irrigation requirements.
(Ord. No. 787, § 1, 9-8-2014)
(a)
All plant materials shall be grown in accordance with proper horticultural practice. Plants shall be healthy, well-branched, vigorous stock with a growth habit normal to the species and variety and free of diseases, insects, and injuries. Plants shall conform to the most recent edition of the "American Standard for Nursery Stock," published by American Nursery and Landscape Association, for measurements, grading, branching, quality, container sizes or ball and burlapping.
(b)
Landscapes shall consist of a variety of species to enhance biodiversity. No one (1) species, within each category as provided below, may make up more than twenty-five percent (25%) of the total non-turf plant materials on the site.
(c)
Landscape categories and minimum installed plant size requirements:
(1)
Shade trees: two-inch caliper.
(2)
Ornamental trees: one and one-half-inch caliper.
(3)
Evergreen trees: six (6) feet height.
(4)
Shrubs: five-gallon container.
(5)
Ornamental grasses: one-gallon container.
(6)
Groundcover and perennial plants: four-inch container.
(d)
Turf variety and planting methods (sod or seed) shall be clearly noted on the plans. If any proposed public right-of-way planting is to be transferred to the City, a low-water sod variety shall be specified for any turf areas.
(e)
Seeded areas. Unless otherwise approved by the City, all areas disturbed by construction shall be reseeded to stabilize soil and prevent erosion. Native, noninvasive grasses should be used for revegetation where practical. Weed control is the responsibility of the landowner on all reseeded areas and all preservation areas. Seed establishment will be considered successful when no bare soil is visible in any area larger than twelve (12) inches square, and weed species comprise no more than twenty percent (20%) of plant density.
(f)
Placement and spacing of all plants must accommodate the potential height and spread of the respective species and variety.
(g)
Artificial plants and synthetic turfs may not be used to meet the requirements of this Article.
(Ord. No. 787, § 1, 9-8-2014)
(a)
Existing contours and proposed alterations to landscape elevations shall be clearly indicated on landscape plans. Grading shall take into consideration historical drainage pathways and other site-specific elements. Drainage onto adjacent properties may not be altered without administrative approval, upon a showing that an easement has been provided by the adjoining property owner for this purpose.
(b)
Maximum slope requirements. Slopes should not exceed three to one (3:1) without structural stabilization. Erosion control shall be specified for all slopes exceeding four to one (4:1). Soil surface on all slopes should be stabilized and mulched or re-vegetated.
(c)
Berms shall be incorporated into the overall site grading and drainage. Maximum slope for berms is three to one (3:1). High water use turf should not be used on steep slopes. Low-water seed mixes, shrubs, grasses, and groundcover plantings are appropriate berm planting treatments.
(Ord. No. 787, § 1, 9-8-2014)
(a)
Tree setbacks for underground utilities. Trees shall be planted a minimum of ten (10) feet from all pressurized utilities. Separation of at least six (6) feet is required for all other buried utilities.
(b)
Tree planting under overhead utility lines. No trees shall be planted under overhead utility lines that will reach a mature height of over thirty (30) feet. Where requirements call for shade trees spaced at one (1) per forty (40) feet, ornamental trees may be substituted spaced at one (1) per thirty (30) feet. Trees that will reach a mature height of over thirty (30) feet shall be placed at least twenty (20) feet horizontally from overhead lines.
(c)
Fire hydrants. No tree trunk or vegetation over twelve (12) inches [in] height is permitted to grow within five (5) feet of a fire hydrant. The five-foot radius shall be clearly indicated on plans.
(d)
Street lights. Shade trees shall be placed at least twenty (20) feet from street lights. Ornamental trees shall be placed at least ten (10) feet from street lights.
(Ord. No. 787, § 1, 9-8-2014)
Landscaping at street intersections shall comply with the City's site visibility and corner visibility triangle requirements. Landscaping at maturity shall reach no more than thirty-six (36) inches [in] height above the adjacent street levels when located in a sight visibility triangle at street intersections. Tree trunks may be allowed provided all limbs and foliage are a minimum of eight (8) feet above finish grade. Refer to City of Dacono Standards for Public Improvements for triangle requirements.
(Ord. No. 787, § 1, 9-8-2014)
Landscape designs shall provide innovative and effective landscaping of water management features. Landscaping associated with storm water facilities shall be integrated into the overall design of the project, and shall enhance the overall appearance of the project, promote infiltration, prevent erosion, and improve water quality whenever possible.
(1)
The use of permeable paving, planting strips, and shallow landscaped depressions in parking lots and along roads is encouraged to help trap and remove pollutants from storm water runoff.
(2)
All facilities shall be planted or seeded with plant species appropriate to the function of the area. Areas to be used for active recreation may be seeded with turf-type native grass species and irrigated with a permanent irrigation system. Habitat and water quality enhancement, including wetland plantings in low wet areas, is encouraged. Areas to be maintained for habitat enhancement shall be planted or seeded with appropriate, noninvasive native plant species. The landowner is responsible for establishment and maintenance of healthy, weed-free vegetation.
(3)
Trees may be planted at the top and on the side slopes of storm water facilities, but not in the bottom. Ensure the required spacing of trees from all storm water lines and facilities.
(Ord. No. 787, § 1, 9-8-2014)
(a)
Minimum percent of landscaped area. The total landscaped area of all proposed development parcels shall comprise a minimum of twenty percent (20%) of the total site area within the property lines. This area may not include building footprints or the hard surface or landscaped areas of parking lots or driveways. However, it can include sidewalks and other pedestrian paths not located within the parking lot, outdoor plazas, water features, and any required landscaped setbacks and/or buffers. This requirement is cumulative for all site categories excluding the parking lot landscape percentage requirement. Credit will be considered for areas with existing vegetation. These areas, if protected throughout construction, may be credited toward the overall landscaped percentage as approved by staff. Landscaped area must include a minimum of seventy-five percent (75%) living material based on mature plant sizes within three (3) years of planting. Tree canopy does not count towards the landscape coverage requirement.
(b)
Landscape setbacks. The required width of the landscape setback is determined by the classification of the adjacent street right-of-way as designated by the City, and is measured from the property line. These minimum setback widths, exclusive of the adjacent street right-of-way, are as follows:
(1)
The minimum landscape setback along the existing I-25 and State Highway 52 corridors, and their associated frontage roads, shall be fifty (50) feet. That portion of a lot in any zone district which abuts the I-25 or State Highway 52 right-of-way shall be landscaped with a minimum of one (1) shade tree, or one (1) evergreen tree, for every twenty-five (25) linear feet of street frontage.
a.
For development adjacent to I-25, a berm should be constructed to a height sufficient to screen elements of the development that lie along the ground plane (parking lots, storage areas or other similar site elements). Such berms shall have maximum side slopes of three to one (3:1). The maximum berm height shall be six (6) feet above the existing elevation at the foot of the proposed berm. If additional height of screening is necessary above the six-foot berm, it shall be achieved through dense landscape plantings. A berm may not be required if the subject property is elevated above the roadway and it can be demonstrated that views into the site will not be possible.
(2)
Adjacent to primary roadway corridors, the landscape setback shall be at least thirty (30) feet wide. The existing primary roadway corridors include Colorado Boulevard (Weld County Road 13), Summit Boulevard (Weld County Road 8), and Graden Boulevard (Weld County Road 12). That portion of a lot in any zone district which abuts a primary roadway corridor right-of-way shall be landscaped with a minimum of one (1) shade tree, or one (1) evergreen tree, for every thirty (30) linear feet of street frontage.
(3)
Adjacent to any secondary roadway corridors, the landscape setback shall be at least twenty-five (25) feet wide. Secondary roadway corridors include Glen Creighton Drive, York Street (Weld County Road 11), and Holly Street (Weld County Road 15). That portion of a lot in any zone district which abuts a secondary roadway corridor right-of-way shall be landscaped with a minimum of one (1) shade tree or one (1) evergreen tree for every forty (40) linear feet of street frontage.
(4)
Adjacent to all other roadway corridors not mentioned above, the landscape setback shall be at least fifteen (15) feet wide. That portion of a lot in any zone district which abuts a non-primary or secondary corridor right-of-way shall be landscaped with a minimum of one (1) shade tree, or one (1) evergreen tree, for every forty (40) linear feet of street frontage.
(5)
For each of the above categories, shrubs shall be provided at a rate of ten (10) shrubs for every required setback tree, and incorporated into landscape beds occurring within the landscape setback.
(6)
Where subdivision lots are approved as part of a development plan, landscaping of the required streetscape right-of-way shall be the responsibility of the developer, including an irrigation system, and sidewalk. Subdivision street frontage rights-of-way shall be landscaped with a minimum of one (1) shade tree for every forty (40) linear feet of street frontage. Maintenance and ownership shall be noted in the recorded covenants and on the subdivision plat. Public areas or areas dedicated to the City shall conform to the standards listed herein.
(7)
Up to twenty-five percent (25%) of the required setback or streetscape trees may be substituted with shrubs and/or ornamental grasses.
a.
Ten (10) shrubs with a minimum container size of five (5) gallons each shall be provided for each tree that is replaced.
b.
Two (2) ornamental grass clumps with a minimum container size of one (1) gallon may replace each shrub.
(8)
The required setback trees may be located in a landscaped setback for which the depth provided is greater than the minimum required depth; however, the required trees shall be located within fifty (50) feet of the property line adjacent to the street.
(9)
The required landscaped setback streetscape trees and landscaping may be located in the adjacent public right-of-way, provided:
a.
The City standards for street trees are met in the case of a City street;
b.
The Colorado Department of Transportation (CDOT) District Engineer approves the trees in the case of a State highway; and,
c.
No conflicts exist with utility easements, drainage facilities, or easements.
(10)
Public sidewalks may be permitted in a required landscaped setback if additional landscaping is provided to adequately compensate for the area of the sidewalk.
(11)
The landscape setback may be approved at less than required depth on up to one-half (½) of the street frontage if the average depth of the landscaped setback complies with the required depth.
(12)
Other roadway corridors may be designated primary or secondary corridors in future transportation planning efforts.
(13)
Plantings along primary and secondary roadway corridor rights-of-way should be integrated with the landscaping of the adjacent development. Tree plantings should be clustered or grouped along the landscaped setback to avoid a straight line of trees, unless appropriate. The effectiveness of the screening shall be increased by planting trees and shrubs in layered beds of two (2) or more rows of plant materials, rather than a single row. A mix of coniferous and deciduous trees and shrubs shall be planted in clusters or groupings. Trees may be grouped with a maximum distance of one hundred (100) feet between trees or groupings, with exceptions made at entrance drives.
(14)
Walls and fences. Walls and fences are permitted, provided they complement the architectural components of the site, are sufficiently low or open to permit views for security and safety, and any opaque portion does not exceed a height of three (3) feet above grade at the base of the wall. Opaque walls and fences higher than three (3) feet (such as noise barriers) must be located outside of the landscaped setback to maintain a landscaped appearance along the street.
a.
Walls and fences shall be contextual to the development. Material colors, types, etc. shall be provided on the plans. No wall or fence shall have an uninterrupted length of over forty (40) feet without a defining feature, such as columns. Large fences and walls shall be softened by plant materials as applicable.
(c)
Parking lot landscaping standards.
(1)
The measured parking lot area includes the paved area and curbs. Measured parking lot area excludes roadways and aisles leading to and from the parking lot to a public or private street.
(2)
For all parking lots consisting of ten (10) or more spaces, a minimum of ten percent (10%) of the total area designated as parking must be landscaped. This ten percent (10%) is in addition to the twenty percent (20%) of the entire lot area that must be landscaped. At least seventy-five percent (75%) of the required landscape area shall consist of living plant material, based on mature plant sizes within three (3) years of planting. Tree canopy does not count towards the landscape coverage percentage.
(3)
Parking islands shall be provided for every fifteen (15) contiguous parking spaces. Islands shall measure a minimum of ten (10) feet in width from back of curb to back of curb shall contain a minimum of one hundred fifty (150) square feet.
(4)
At least one (1) tree must be planted for every two hundred (200) square feet of interior parking lot landscaped area. At least seventy-five percent (75%) of the required trees must be shade trees. Shade tree plantings shall be within or adjacent to the parking lot, clustered, or planted singly in planters, tree islands at the end of parking bays, in medians, between rows of cars, or as part of a continuous landscape strip. Trees may not be planted closer than three (3) feet from the back of any curb. Required trees must be planted within eight (8) feet of a paved motor vehicle lot. Shrub placement should accommodate the potential overhang of vehicle bumpers into planting beds.
(5)
At least seventy-five percent (75%) of the length of the frontage of the parking lot must be screened with a combination of plants and berms that reach at least three (3) feet height at maturity. The width of intersecting driveways shall not be included in the calculation. Screening shall consist of at least fifty percent (50%) evergreen material. Berms shall have smooth transitions from the top of the curb to the setback line, and should not impede site drainage or create snow traps.
(6)
Where motor vehicle lot soil has been compacted by grading operations, the soil of any planter within the lot shall be structurally renovated (tilled) or removed to a depth of twenty (20) inches and replaced with an acceptable growing medium for the species indicated for installation.
(d)
Internal landscape standards.
(1)
Minimum internal landscaping area: Five percent (5%) of the site's net area (site's area excluding adjacent public street rights-of-way). This calculation shall exclude parking lot landscape requirements and any required setbacks and/or buffers, but may be included in the twenty percent (20%) overall landscaped area requirement.
(2)
Minimum number of trees: One (1) tree for every five hundred (500) square feet of the required minimum internal landscaping area.
(3)
Up to fifty percent (50%) of the required internal trees may be substituted by shrubs.
(4)
Shrub substitutes for trees are allowed at a ratio of ten (10) shrubs, with a container size of five (5) gallons, for one (1) tree. Shrub bed area for each substitute shrub shall be at least fifteen (15) square feet. Ornamental grass substitutes for shrubs are allowed at a ratio of two (2) plants, with a container size of one (1) gallon, for one (1) shrub.
(5)
That portion of a landscape setback in excess of the minimum depth may be credited toward the required internal landscaping.
(6)
Setback distances from buildings shall allow for mature growth of trees. Tree limbs shall have a minimum of six (6) feet clearance over pedestrian walkways. Vegetation planted adjacent to buildings shall be offset from the foundation wall at least one-half (½) of the typical spread for the species, plus one (1) additional foot. Any planting area adjacent to a building shall be a minimum of three (3) feet wide in any direction. Plaza planters shall provide an area of at least one hundred fifty (150) square feet for each tree.
(e)
Buffer and screening standards. Whenever the use of a property to be developed or redeveloped will conflict with the reasonable use of an adjoining property, a buffer zone shall be provided between the two (2) uses. The buffer may be accomplished through the use of a combination of planting, berms and fencing. However, in no event shall a fence be the only screening material used. The buffer shall moderate the impact of noise, light, unattractive visual elements and traffic.
(1)
High-intensity land uses, such as commercial, retail, mixed-use, parking lots, or industrial, shall be screened from the adjacent low-intensity uses, including residential multifamily, mixed-use, and educational. A fifteen-foot wide buffer, where feasible, shall be provided along the property lines of all high-intensity uses, and shall contain dense screening plant materials. One (1) tree and five (5) shrubs shall be provided for every twenty-five (25) feet of linear buffer. At least seventy-five percent (75%) of the length of the frontage, excepting all drives, must be screened with plants that reach at least six (6) feet height at maturity. Screening plants shall consist of at least fifty percent (50%) evergreen material. In the event that both setback and buffer requirements apply to a single frontage, the stricter requirement shall be implemented.
(2)
Loading, service, and storage areas visible from the public right-of-way or adjacent properties must be screened with an opaque screen that is an integral part of the building architecture or landscape design. Screening may be achieved with landscaping, berms, boulders, fencing or a combination of elements. Chain link fencing with slats, tires, or used building materials are not acceptable screening. At least seventy-five percent (75%) of the length of the frontage, excepting drives, must be screened with plants that reach at least six (6) feet height at maturity. Screening plants shall consist of at least fifty percent (50%) evergreen material.
(3)
Trash collection and recycling areas and service and loading areas shall be screened on all sides so that no portion of such areas is visible from public streets and adjacent properties. Required screening may include new and existing plantings, walls, fences, screen panels, doors, berms, buildings, or any combination thereof.
(Ord. No. 787, § 1, 9-8-2014)
(a)
Permanent irrigation systems are not required for landscaped areas, including pots and planters that are cumulatively less than five hundred (500) square feet. Landscaped areas larger than five hundred (500) square feet shall have a permanent, water efficient irrigation system that provides full coverage to all plant materials. Unless otherwise approved, this irrigation shall be an automatic irrigation system.
(1)
The maximum annual water allowance is fifteen (15) inches of supplemental irrigation applied to the total landscaped area. Plants of any water need may be used in the landscape, providing the total annual water use does not exceed the water allowance. The annual supplemental water allowance for active recreation areas, such as sports fields, schools and parks, may be increased to twenty (20) inches. This requirement may be waived during construction and for the first six (6) weeks after completion of installation to allow for successful establishment of plants.
(2)
Temporary establishment and permanent irrigation methods, as well as timing and application rate, shall be indicated on irrigation plans. Plans shall identify application rates, as well as monthly and annual water demand totals. Seasonal application rates shall be consistent with plant water needs.
(3)
The irrigation system shall be designed to provide peak season irrigation within a three-night per week watering period. Watering must occur between 8:00 p.m. and 8:00 a.m. the following day. Tap sizes and all zone flow rates must be adequate to accomplish necessary watering within this time frame.
(4)
Site water pressure shall be identified by the City Engineer prior to irrigation system design and shall be noted on irrigation plans. Actual on-site pressure may vary based on water system demand at the time of the pressure test, subsequent development placing additional demand on the water system, and other factors. Irrigation system design shall provide flexibility to accommodate variations in pressure conditions.
(5)
Irrigation systems may be served through a combined tap with the building, or from a dedicated irrigation tap. A backflow preventer shall be provided on all systems. Where the irrigation point of connection is from the domestic water service, the irrigation tap and backflow preventer shall be installed after the water meter but before any backflow or pressure-reducing valve for the building. The irrigation service line shall be the same size as the tap from the City water main for at least ten (10) pipe diameters downstream of the meter.
(6)
The mainline system shall be designed such that velocities within the mainline piping do not exceed five (5) feet per second. Maximum velocity shall not exceed seven and one-half (7½) feet per second through the service connection. A shut off valve with drain, or stop and waste, is required downstream of the meter.
(7)
No main or lateral supply lines or sprinkler heads may be located within five (5) feet of a building foundation wall, though drip emitters may be extended to plants in these areas. Sprinkler heads should be located a minimum of four (4) inches from walks and other paced surfaces.
(8)
Moisture sensors and smart controllers. At least one (1) water conservation device, such as a moisture sensor, rain shutoff device, weather station, or smart controller, is required. Smart controllers with a master valve and a flow sensor are strongly encouraged, especially for large systems.
(9)
Irrigation shall be hydrozoned, grouping plants with similar water needs by irrigation zone. Generally, trees, shrubs, perennials, and groundcovers should be irrigated with drip irrigation. Drip irrigation should be used for all shrubs, perennial and groundcover beds, with micro-sprays being acceptable only for large groundcover areas. Turf areas should be watered separately from planting beds, shrubs and trees. Turf shall be watered using fixed or rotary nozzles with check valves and pressure regulation or compensation. Areas seeded with low-water native grasses do not require permanent irrigation. All seeded areas shall be irrigated until reasonably established or as required on approved landscape plans. Permanent sprinkler zones shall provide head to head coverage. The property owner is responsible for insuring that sprinkler heads are adjusted to minimize overspray onto paved areas and hard surfaces.
(10)
Well-planned sprinkler systems can save water when properly installed and operated. Landscaping shall be irrigated according to the condition of the plants, not on a fixed schedule. To avoid runoff, apply only as much water with each cycle as the soil can absorb. Trees, shrubs, perennials and groundcovers can be watered more efficiently with low-volume drip emitters. To promote deep rooting, water infrequently, but deeply.
(11)
Overhead irrigation is not recommended in areas with slopes greater than four to one (4:1).
(12)
Water shall not be applied to impervious surfaces. The irrigation system shall be designed to eliminate run-off from landscaped areas and shall not damage street, sidewalk, or utility infrastructure.
(13)
Installation of irrigation system shall be consistent with approved plans, and meet City standards and criteria prior to issuance of certificate of occupancy.
(14)
As-built plans, clearly demonstrating any deviations from the approved irrigation plans, shall be provided to the City upon request.
(Ord. No. 787, § 1, 9-8-2014)
Upon project completion, and prior to probationary acceptance, a final site inspection shall be conducted by the City. Inspection, warranty period and final acceptance shall be in accordance with the City's improvement guarantee standards set forth in Article 15 of Chapter 17 of this Code.
(Ord. No. 787, § 1, 9-8-2014)
Installation of landscaping and irrigation shall be in accordance with the approved plans. Any deviations from the approved plans, including any substitutions of approved plant materials, shall be approved by the City prior to installation and shown in a set of as-built plans prepared upon completion. The City may reject any deviations from the approved plans that it determines are not in compliance with the requirements set forth in this Article.
(Ord. No. 787, § 1, 9-8-2014)
(a)
Notes detailing the responsible parties and practices for future maintenance shall be placed on the landscape plans.
(b)
Irrigation system shall be maintained to perform as designed, including distribution uniformity, allowing maximum absorption and eliminating run-off. Landscaping shall be watered according to plant needs and current soil moisture conditions, not on a rigid schedule.
(c)
All required landscaping for regulated landscapes shall be maintained and replaced by the landowner as necessary to maintain the intent of the approved plans. Plant materials exhibiting evidence of insect or disease infestation or other damage shall be appropriately treated. Dead plant material shall be removed and replaced. All landscape areas shall be maintained free of invasive species and noxious weeds.
(d)
Mulch materials that no longer cover the area where originally deposited shall be regularly replenished to maintain the full coverage to a minimum depth of two (2) inches for rock mulches, three (3) inches for organic mulch.
(e)
Unless the landscape improvements were installed by the City, current and future landowners shall be responsible for maintenance of landscaping within the portion of the public right-of-way between the back of the curb or street pavement and the adjacent property.
(Ord. No. 787, § 1, 9-8-2014)
Appendix A
Appendix B
Appendix C
Appendix D
Appendix E
Appendix F
Appendix G
Appendix H
(Ord. No. 787, § 1, 9-8-2014)