- GENERAL PROVISIONS
The regulations set forth in this Ordinance affect all land, every building, and every use of land and/or buildings and shall apply as follows.
7:1.1. New Uses or Construction. After the effective date of this Ordinance, any new construction or uses of land shall conform to the use and dimensional requirements for the district in which it is to be located.
7:1.2. Open Space Requirements. After the effective date of this Ordinance, no part of a yard, court, or other open space, or off-street parking or loading space required for the purpose of complying with the provisions of this Ordinance shall be included as part of a yard, open space, or parking and loading space required for any other building.
7:1.3. Reduction of Lot and Yard Area Prohibited. No yard or lot existing at the time of passage of this Ordinance shall be reduced in size or area below minimum requirements set forth herein. Yards or lots created after the effective date of this Ordinance shall meet at least the minimum requirements established herein.
7:1.4. Conforming Uses. After the effective date of this Ordinance, structures or the uses of land or structures which then conform to the regulations for the district in which such structures or uses are located may be continued; provided that any structural alteration or change in use shall conform with the regulations herein specified.
7:1.5. Nonconforming Uses. After the effective date of this Ordinance, structures or uses of land or structures which would be prohibited under the regulations for the district in which such structures or uses are located shall be considered as nonconforming. Nonconforming structures or uses may be continued; provided they conform to the provisions contained in Article 7, Section 2.
7:1.6. Nonconforming Lots. In any district in which single-family dwellings are permitted, if a lot of record at the effective date of adoption of this Ordinance does not contain sufficient land area to permit a building to conform to the dimensional requirements of the Ordinance, such lot may be used as a building site for a single-family residence provided there is a conformance to the minimum front and side yard requirements set forth in this Ordinance for the district in which the residence is located; and further, that any permitted use serviced by a private septic tank system shall meet minimum County Health Department regulations.
7:2.1. Extension of Nonconforming Uses; Nonconforming Structures. Nonconforming uses of land or structures existing at the time of adoption of this Ordinance shall not hereafter be enlarged or extended in any way, with the exception of nonconforming single-family residential structures. Nonconforming single-family residential structures may be enlarged or extended in any zoning district provided that the new additions conform to the setback requirements provided in the zoning district in which such structures or uses are located.
7:2.2. Change of Nonconforming Use. Any nonconforming use may be changed to any conforming use, or with the approval of the Zoning Board of Adjustment, to any use more in character with the uses permitted in the district. In permitting such change, the Zoning Board of Adjustment may require appropriate conditions and safeguards in accordance with the provisions of this Ordinance.
7:2.3. Cessation of Nonconforming Uses. When a nonconforming use of land ceases for a continuous period of six consecutive months, subsequent use of the land shall conform to the regulations for the district in which the land is located.
7:2.4. Cessation of Nonconforming Uses of Structures. When a nonconforming use of a structure is discontinued or abandoned for six consecutive months, the use shall not be resumed; and the subsequent use shall conform to the regulations for the district in which the structure is located.
7:2.5. Repair and Alteration of Nonconforming Uses. Normal maintenance and repair of a building occupied by a nonconforming use is permitted provided no other provisions of this Ordinance are violated.
7:2.6. Damage or Destruction of Nonconforming Uses. Any structure containing a nonconforming use which has been damaged by fire or other causes may be reconstructed and used as before if reconstruction is substantially begun within 12 months of such damage. However, reconstructed structures shall not exceed the square footage contained in the structure at the time the damage occurred. Furthermore, all reconstructed structures which alter, improve on, or are built on a different site from the original construction shall meet all applicable requirements for the district in which the structure is to be located unless such requirements are waived or modified by the Board of Zoning Adjustments pursuant to its powers enumerated in Article 11.
7:2.7. Temporary Nonconforming Uses of Land. Temporary nonconforming uses of land for carnivals and similar uses may be permitted according to the provisions of Article 10, Section 3.
There shall be not more than one principal residential building and its accessory buildings on one lot, except as provided in Article 5.
Every building hereafter erected or moved shall be located on a lot adjacent to and have access to a public street, highway, road, or other public way.
No commercial signs or other structures shall project beyond any right-of-way line of any street. No shrubbery shall project into any public street right-of-way.
7:6-1. Vehicles without Current License Plates and/or Inoperable Motor Vehicles. Automobiles, trucks, or trailers of any kind or type without current license plates and or inoperable motor vehicles shall not be parked or stored in any zoned areas other than in completely enclosed buildings. No vehicle shall at any time be in a state of major disassembly, disrepair, or in the process of being stripped or dismantled. Painting of vehicles is prohibited unless conducted inside an approved spray booth.
7:6.2. Travel or Camping Trailers. Not more than one travel or camping trailer, per family living on the premises, shall be permitted on a lot in any Residential District. The trailer shall not be occupied temporarily or permanently while it is parked or stored, except in an authorized mobile home park.
7:6.3. Commercial Vehicles. Not more than one commercial vehicle, which does not exceed 1½ tons rated capacity, per family living on the premises, shall be permitted in a Residential District; no commercial vehicles used for hauling explosives, gasoline, or liquefied petroleum products shall be permitted.
(Ord. No. 2007-18, § 1, 5-10-07)
The following provisions qualify and supplement the specific height regulations set forth in Table 7.3.
7:7.1. Public and Semipublic Buildings. Hospitals, schools, churches, and other public and semipublic buildings may exceed the height limitations of the district if the minimum depth of rear yards and the minimum width of side yards required in the district regulations are increased one foot for each two feet by which the height of such public or semipublic building exceeds the prescribed height limit.
7:7.2. Other Structures. Chimneys elevators, poles, spires, tanks, towers, and other projections not used for human occupancy may exceed the district height limit.
(Ord. No. 2023-7, § 1(e), 7-13-23)
On any corner lot on which a front and side yard are required, nothing shall be erected, placed, planted, or allowed to grow which obstructs sight lines between a height of 2½ feet above the crown of the adjacent roadway and ten feet in a triangular area formed by measuring from the point of intersection of the front and exterior side lot lines a distance of 25 feet along the front and side lot lines and connecting the points so established to form a triangle on the area of the lot adjacent to the street intersection.
There shall be provided at the time of the erection of any building, or at the time any principal building is enlarged or increased in capacity by adding dwelling units, guest rooms, seats, or floor area; or before conversion from one type of use of occupancy to another, permanent off-street parking space in the amount specified by this section. Such parking space may be provided in a parking garage or properly graded and improved open space. All portions of the required space which are paved shall be marked in accordance with the standards contained herein. Lines shall be marked with an approved paint.
7:9.1. Certification of Minimum Parking Requirements. Each application for a Building Permit or Certificate of Occupancy submitted to the Zoning Administrator, as provided for in Article 10, shall include a plan showing the required space reserved for off-street parking and loading space and the means of ingress and egress to such space. This information shall be the responsibility of the owner/developer and shall be sufficient to enable the Zoning Administrator to determine whether or not the requirements of this section are met.
7:9.2. Combination of Required Parking Space. The required parking space for any number of separate uses may be combined in one lot, but the required space assigned to one use may not be assigned to another use, except that one-half of the parking space required for churches, theatres, or other uses whose peak attendance will be at night or on Sundays may be assigned to a use which will be closed at night or on Sundays.
7:9.3. Remote Parking Space. If the off-street parking space required by this Ordinance cannot be reasonably provided on the same lot on which the principal use is located, such space may be provided on any land within 400 feet of the principal use. Such space shall be deemed required space associated with the permitted use and shall not hereafter be reduced or encroached upon in any manner. It is further provided that the Zoning Administrator may require a plat, deed, or other documentation necessary to show that remote parking space is controlled by and available to the applicant prior to the granting of a Zoning Certificate.
7:9.4. Design of Parking Area. All off-street parking except off-street parking for single-family detached dwelling units, single-family attached dwelling units on adjoining individual lots, or two-family dwellings located on a residential service street, shall be designed so that vehicles can turn around within the area and enter the street, road, or highway in such a manner as to completely eliminate the necessity of backing into the street, road, or highway. Off-street parking for single-family detached dwelling units, single-family attached dwelling units on adjoining individual lots, or two-family dwelling units, which requires backing into a residential service street shall be permitted provided that such movement can be made with reasonable safety and without interfering with other traffic. Curbing shall be required along the edge of pavement and landscape islands of the parking area, except for the purpose of bioretention cells and rain gardens, which may be approved by the Zoning Administrator and City Engineer.
7:9.5. Size of Off-Street Parking Space. The size of a parking space for one vehicle shall consist of a rectangular area having dimensions of not less than 9 feet by 20 feet, plus adequate area for ingress and egress. The Zoning Administrator may approve compact car parking spaces up to 10% of a parking area, meeting current ANSI specifications. The spaces must be signed or stenciled appropriately, and should incorporate a deterrent for larger vehicles to use the spaces.
7:9.5.1. Off-Street Parking Space Design Standard.
(See Diagram)
Minimum driveway widths shall be maintained to the point of intersection with the adjoining public or private right-of-way.
At least one fire access lane must be provided and approved by the local fire district.
In 90 degree parking stalls, the depth of the stall may be reduced to 18 feet where a grassed or landscaped median, with a minimum two-foot width per row of parking stalls, has been provided for automobile overhang. Wheel-stops or curbing shall be provided to protect and delineate the median from the parking stalls.
Parking Standards
7:9.6 Parking Requirements. Wherever off-street parking is required in district regulations, a minimum of two spaces per 1,000 square feet of gross floor area and not to exceed a maximum of three spaces per 1,000 square feet of gross floor area shall be provided on the same lot with the principal use, except as provided in section 7:9.3.
PARKING RATIOS - SEE TABLE BELOW
If the parking spaces are constructed of a pervious material the Zoning Administrator may authorize an increase up to 125% above the allowable parking space maximum.
The zoning administrator may authorize a 50% reduction from the minimum number of parking spaces required if it is demonstrated that fewer spaces are needed. The zoning administrator may waive the minimum requirement in the Central Business District for new developments or re-developments provided the parking ratios (see below table) include existing parking. The resulting on-street parking must consistent with the Central Business District guidelines (Section 5:5.4).
7:9.7. Lighting. All parking lot and merchandise display area lighting fixtures, other than floodlights permitted under 7:9.8 herein, shall be cutoff fixtures and shall be mounted at a height not greater than 32 feet above finished grade. Lighting levels in a parking lot shall not exceed 20 foot-candles, and merchandise display area lighting shall not exceed 30 foot-candles, initial level.
7:9.8. Flood Lighting. All flood lights shall be installed with the fixture aimed downward at least 45 degrees below horizontal. Flood lights shall be orientated or shielded so that the source of the light is not visible from the road right-of-way or from any residential use.
7:9.9. Alternative parking surfaces. Up to 125 percent of the required parking areas for office and commercial buildings may be constructed using grass over supporting plastic or concrete grids, or any other pervious surface as approved by the City of Fountain Inn to help reduce the amount of impervious surface on the site. The alternative parking surface should be installed according to the manufacturer's installation instructions.
7:9.10. Landscaping of Parking Area.
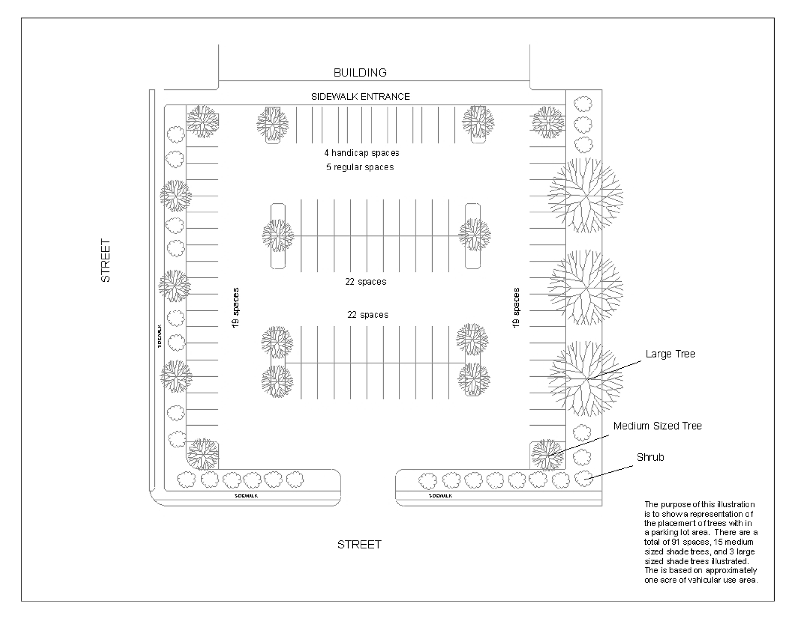
Intent: This section is established to reduce the adverse visual, environmental, and aesthetic effects of parking lots, drives, and loading areas by the use of trees and other plant materials. Landscaping will enhance the appearance of the development, provide shade to reduce heat and glare from paved surfaces, reduce storm water runoff, filter pollutants and reduce the formation of ozone and evaporation of nitrous oxides into the air, and reduce the glare of headlights and noise on surrounding properties.
7:9.11. Plan Submittal Requirements.
Landscaping plan required contents: Prior to the issuance of an occupancy permit for any development, a specific landscape plan, at a scale of not less than one inch equals 50 feet, shall be submitted to the building and zoning division for approval and shall contain existing and proposed landscaping, including:
•
The location, botanical name and common name, size in diameter one-half foot above grade, and height of new trees to be planted, which must comply with this code.
•
The location, botanical name and common name, size in diameter 4½ feet above grade, and estimated height of existing trees, which are to be maintained or preserved for credit as per the requirements of this code.
•
The location and dimensions of parking lot buffer areas and other planting areas.
•
The size, botanical name and common name and spacing of plant materials.
•
The location and design of any fence, wall, or earthen berm indicating size, dimensions and materials.
•
The location and description of any barriers required to be erected to protect any existing vegetation from damage as required in section 7:9.15.
•
Provisions for watering and other long-term maintenance to assure serviceability, soil stabilization, and plant protection.
7:9.12. Roadside Buffers. All new off-street parking lots, regardless of size, located adjacent to existing public right(s)-of-way shall establish roadside buffers. Roadside buffers shall be located outside of the rights-of-way of existing roads and shall be located outside the future rights-of-way of all roads in the GPATS Long Range Plan.
A.
The minimum roadside buffer width shall have an average planting width of eight feet, with the minimum width for any buffer yard being (5) feet. Buffers shall contain the following plant materials:
An average of one medium or large shade tree for every 40 feet of linear road frontage. Trees shall be spaced so that there is a minimum of one tree for every 200 linear feet of road frontage. Shrubs spaced to provide a continuous evergreen screen within three years of installation.
B.
Within the buffer yard fences, walls, earthen berms, or any combination thereof may be used to meet the requirements of this section, so long as they are a minimum of 30 inches in height and provide a continuous opaque visual screen. Berms shall have a side slope no greater than 2:1.
C.
Where existing overhead power utility lines preclude sufficient space for a shade tree to grow, then two small trees shall be substituted for each required shade tree.
7:9.13. Interior Plantings. In addition to all other landscaping requirements, all new off-street parking lots with 20 or more spaces shall provide and maintain landscaped planting areas within the interior of, and adjacent to, the parking lot:
A.
Interior planting islands for medium shade trees shall have a minimum planting area of eight feet wide by 18 feet long.
B.
Interior planting islands for large shade trees shall have a minimum planting area of 16 feet wide by 18 feet long.
C.
In addition to the required trees and shrubs interior-planting areas shall be grassed or covered with mulch.
D.
All planting areas shall be protected from vehicular intrusion by the installation of curbing, and/or wheel stops.
E.
Perimeter and interior plantings must be planted with a minimum of one medium shade tree and two shrubs or small trees for every 2,000 square feet of vehicular use area, which includes parking spaces, aisles, driveways, and loading areas; or
F.
Perimeter and interior plantings must be planted with one large shade tree and two shrubs, medium shade trees, or small trees for every 4,000 square feet of vehicular use area, which includes parking spaces, aisles, driveways, and loading areas.
G.
Interior planting areas shall be designed within or adjacent to the parking area(s) as:
•
Islands, located at the end of parking bays;
•
Islands, located between parallel rows of cars;
•
Driveway medians a minimum of eight feet in width;
•
Intermediate islands; or
•
A combination of the above
H.
Trees and shrubs must be planted within 20 feet of the vehicular use area to satisfy the interior planting requirements.
I.
The design size and shape of the interior planting areas shall be at the discretion of the owner; however, no parking space shall be:
•
Located farther than 60 feet from the trunk of a shade tree;
•
Separated from a shade tree by a building or other structure.
J.
Parking structures are excluded from interior landscape areas.
7:9.14. Planting Material Specifications.
A.
Large shade trees shall have a minimum planting size of two inches caliper.
B.
Small trees and multi-stem trees shall have a minimum planting height of six feet tall.
C.
Evergreen shrubs shall have a minimum installed height of 12 inches and a minimum height of 30 inches within three years of installation. All shrubs inside the sight triangle at points of ingress and egress shall not exceed 36 inches in height.

Figure 1. Interior Landscaping
7:9.15. Existing Trees. It is encouraged to use existing trees to meet the requirements of this section. If existing trees are preserved to meet the roadside buffer or interior planting requirements, a reduction in the new planting requirements will be given. Existing trees will be credited towards meeting the requirements of this section as follows:
One tree (2—6 inches diameter at breast height) = 1 planted tree
One tree (6—10 inches diameter at breast height) = 2 planted trees
One tree (10—15 inches diameter at breast height) = 3 planted trees
One tree (15+ inches diameter at breast height) = 4 planted trees
Protection of Existing Trees Any trees preserved on a development tract to receive credit shall meet the following protection standards. A root protection zone shall be established around all trees to be preserved. The root protection zone shall be clearly shown on all grading and site plans.
A.
Root Protection Zone - The land area around the base of a tree in which disturbances are prohibited in order to protect the roots of the tree and aid the tree's survival. The root protection zone shall be equal to one foot radius for every inch of tree diameter measured at a point 4½ feet above ground. Root protection zone measurements shall be rounded off to the nearest foot.
B.
Protective Barrier - A protective barrier shall be installed at the start of grading, and be located at the outer edge of the root protection zone. Protective barriers shall be posted as a "Tree Save Area". This procedure shall be incorporated as a note on the grading and erosion control plans. Protective barriers shall be constructed of a material resistant to degradation by sun, wind, and moisture and shall remain in place until all construction is complete.
C.
No storage of materials, dumping of waste materials, trenching, grading, fill, or parking of equipment shall be allowed within the root protection zone and no trespassing shall be allowed within the boundary of the root protection zone. Utility easements are not permitted, unless the Zoning Administrator deems that there is no alternative method.
7:9.16. Landscaping for Preexisting Parking Lots.
A.
Purpose and intent of section. The city recognizes the need to include in this article minimum landscaping requirements for preexisting parking lots. The city also recognizes that failing to bring nonconforming parking lots into conformance with this article not only jeopardizes the physical revitalization of the city, but also fails to equally provide the environmental benefits associated with living trees to all regions of the city. The practical effect of this section is to bring these preexisting areas into conformity with the regulations for the installation of trees and other plant materials in new developments.
B.
Preferred design standards. Although not required by this section, the preferred design of buffers and/or other planting areas for preexisting parking lot areas would be to install the required minimum number of trees and other plant materials, spaced evenly, in a buffer between the vehicular surface area and the public right-of-way. The plant materials used in the buffer yards should be designed to assure visibility and safety of pedestrians on the public street, as well as those within the parking lot.
C.
Application of section. Any preexisting parking lot area to which an expansion or addition is made shall be landscaped to meet the buffer yard and interior planting requirements of this section.
D.
Landscape requirements.
(1)
In order to achieve the desired results of this section, the minimum number of off-street parking spaces previously required by the City Code may be reduced by a maximum of 25 percent. No reduction in the required number of parking spaces shall occur without the prior approval of the zoning administrator, who shall first determine if the proposed reductions would cause or increase on-street parking congestion.
(2)
Expansions or additions to existing parking lots shall be subject to:
a.
Preexisting parking lots that occupy a corner lot, to which any expansions and/or additions are made and preexisting parking lots, to which expansions or additions of more than 25 percent are made, shall meet 100 percent of the buffer yard landscaping requirements for new development.
b.
All other preexisting parking lots, to which expansions or additions of 25 percent or less are made, shall be subject to 50 percent of the buffer yard landscaping requirements for new development.
(3)
Landscaped planting areas.
a.
All preexisting parking lots shall be required to provide and maintain landscaped planting areas within the interior of, and/or adjacent to, all portions of the parking lot. Each landscaped planting area shall contain a minimum area adequate to accommodate the most growth of the plant material used.
b.
Existing planting areas containing a minimum of 144 square feet and existing trees with a minimum caliper of one inch measured at a 4 ½ feet above grade may be used to meet the requirements provided that, should these existing trees become diseased, unhealthy, or die, they shall be replaced within one year with approved shade trees.
c.
All areas used for required buffer yards shall be located on the property. In unusual or extraordinary circumstances, as determined by the zoning administrator, public property or public-right-of-way may be used to meet the requirements of this section, provided the property owner obtains permission from the city public works department and/or SCDOT. Maintenance remains the responsibility of the private property owner.
(4)
Interior planting areas shall be designed within or adjacent to the parking area as:
a.
Islands located at the end of parking bays;
b.
Islands located between parallel rows of cars, used to visually separate parking areas;
c.
Part of a continuous street yard planting;
d.
Driveway medians, which shall have a minimum width of four feet for medians with shrubs, six feet for medians with shrubs and intermediate trees and nine feet for medians with major deciduous or evergreen trees;
e.
Foundation plantings; or
f.
A combination of the items set forth in subsection (4) a-e.
g.
Provide drainage for planting areas, "Shade" trees can be used if adequate rooting medium Cornell Structural Soil, 'CU-Soil' is used.
(5)
Each interior planting area shall contain locally adapted trees and shrubs at the following rates:
a.
Trees shall be required at the minimum rate of one (1) medium shade tree for every 2,000 square feet, or portion thereof, of total preexisting parking lot or;
b.
One (1) large shade tree for every 4,000 square feet, or portion thereof, of total preexisting parking lot.
c.
Shrubs shall be required at the minimum rate of one shrub per 1,000 square feet, or a portion thereof, of total preexisting parking lot.
(6)
All planting areas shall be protected from vehicle damage by the installation of curbing, wheel stops, extra width in the buffer area or other method approved by the zoning administrator.
(7)
Shrubs in buffer yards shall be no less than 18 inches in height when installed and shall attain a minimum height of 30 inches as measured from either the adjacent right-of-way or the paved parking lot, whichever is higher in elevation. No more than 25 percent of the required shrubs may be deciduous.
(8)
Earthen berms may also be incorporated into the design of any required planting area. Any berm installed shall have a minimum side slope of no greater than two to one. Berms shall be planted with locally adapted species of shrubs, ground covers and/or other plant materials. However, shrubs planted on berms may have a lesser height, provided that the combined height of the berm and the plantings after three years is at least 30 inches high.
7:9.17. Landscaping for Loading, Outdoor Storage and Utility Service.
A.
In general, all loading, outdoor storage, and utility service areas established after the adoption of the Ordinance from which this section is derived and not screened by an intervening building or other screening shall be screened from view from public street rights-of-way(s) for their entire length, except for necessary access. The plant materials used for the screening of these facilities should be designed to assure visibility and safety of pedestrians on the public street, as well as those within the parking lot. The required screening in this section is in addition to any other screening required by this article.
B.
Loading areas, including garbage dumpsters and material storage areas. Screening for loading areas may be accomplished by:
(1)
A solid (opaque) fence or wall which is at least six feet high and is made of the same or compatible material as the material of the principal building. Additional plant materials shall be provided so that no more than two-thirds of the surface area of the fence or wall is visible from the street within three years of erection of the structure; and
(2)
Evergreen plant material, which can be expected to reach a minimum height of six feet within three years of planting. Any plant materials used to fulfill these requirements shall be a minimum of three feet in height when planted, and be spaced at intervals that guarantee complete visual screening within five years.
C.
Outdoor storage area. Screening for outdoor storage may be accomplished with the use of plant material, solid (opaque) fences, walls or earthen berms, or any combination thereof. Screening shall be in accordance with SCDOT sight-triangle requirements and/or those requirements in other sections of this chapter, to ensure public safety at all drive entrances and exits.
(1)
Screening shall be exclusive of driveways and sight triangles for safe automobile ingress and egress.
(2)
When fences and walls are used, they shall be of the same or compatible material as the material of the principal building. Additional planting materials shall be provided so that no more than two-thirds of the surface area of the fence or wall is visible from the street within three years of erection of the structure. Twenty-five percent of this plant material may be deciduous.
(3)
Any berms installed shall have a side slope of no greater than two to one, and shall be planted and covered with live vegetation.
(4)
All shrubs installed to satisfy the requirements of this section shall be locally adapted species expected to reach a minimum height of six feet within three years of planting. All shrubs shall be a minimum height of six feet within three years of planting. All shrubs shall be a minimum of 18 inches when planted. Vegetation planted on berms may have a reduced minimum mature height, provided that the combined height of the berm and the plantings shall be a minimum of six feet in height after three years. Twenty-five percent of all shrubs may be deciduous.
(5)
Screening for utility Service Areas May Be Accomplished By Locally Adapted Evergreen Plant Materials, Fences, Walls, Or A Combination Thereof.
(6)
Plant materials shall be a minimum of 18 inches in height when planted and are expected to reach a minimum height of six feet within five years.
7:9.18. Exceptions.
A.
Any lot used for the express purpose of automobile sales and storage is exempt from the landscaping requirements for interior plantings.
B.
Parking Structures (multi-level).
7:9.19. Owner Responsibilities and Maintenance. The owner, his successors, or assigns, are responsible for maintaining all required plant material in good health. Any planted trees which die or become unhealthy and are used to meet the provisions of this section must be replaced within one year with vegetation which conforms to the initial planting standards of section 7:9.10.
7:9.20. Prohibited Plant Material. Bradford pears, Pryrus calleryana, are prohibited as a plant medium for landscaping as it applies to this Ordinance. These trees have limbs that are easily damaged in the presence of high winds, heavy rains, and/or snowstorms. For this reason Bradford Pear trees are subject to premature replacement, and they are not a suitable tree for long term landscaping or buffering.
7:9.21. Suggested Plant Material List. This list is not intended to be all-inclusive, but does include common trees and shrubs suitable for use in this region. Professional expertise should be sought to determine the appropriate plant materials for any particular site when considering individual site, soil, moisture, and microclimate conditions.
Large Shade Trees
American Sycamore Platanus occidentalis
Bald cypress, Taxodium distichum
Chinese Elm, Ulmus parvifolia
Cryptomeria, Cryptomeria japonica
Dawn Redwood, Metasequoia
Deodar Cedar, Cedrus deodara
Japanese Pagoda, Sophora japonica
Japanese Zelkova, Zelkova serrata
Laurel Oak, Quercus laurifolia
Littleleaf Linden, Tillia cordata
London planetree Platanus x acerifolia
Schumard Oak, Quercus schumardi
Southern Magnolia, Magnolia grandiflora
Sweet Gum Liquidambar styraciflua
Water Oak, Quercus nigra
White Ash, Fraxinus americana
White Oak, Quercus alba
Willow Oak, Quercu phellos
Medium Shade Trees
American Holly Ilex opaca
American Hophornbeam Ostrya virginiana
Amur Maple Acer ginnala
Chinese Elm Ulmus parvifolia
Chinese Pistache Pistacia chinensis
Foster's Holly Ilex x attenuata
Golden Raintree, Koelreuteria paniculata
Hedge Maple Acer campestre
Japanese Crape Myrtle, (larger varieties) Lagerstroemia fauriei
Japanese Lighstrum Ligustrum japonicum
Lacebark Elm Ulmus parvifolia
Littleleaf Linden, Tillia cordata
Red Maple Acer rubrum
River Birch Betula nigra
Savannah Holly Ilex x attenuate
Trident Maple Acer buergerianum
Small Trees
American Holly, Ilex opaca
Amur Maple, Acer ginnala
Carolina Silverbell, Halesia Carolina
Chastetree Vitex agnus-castus
Crabapple Malus baccata
Crape-Myrtle, Lagerstroemia indica
Eastern Redbud, Cercis canadensis
Flowering Dogwood, Cornus florida
Golden Raintree, Koelreuteria paniculata
Japanese Maple, Acer palmatum
Kousa Dogwood, Cornus kousa
Kwanzan Cherry, Prunus serrucata
Pissard Plum, Prunus cerasifera
Saucer Magnolia, Magnolia soulangiana
Serviceberry, Amelanchier arborea
Yoshino Cherry, Prunus x yedoensis
Evergreen Shrubs
Azalea, Azalea obtusum
Carissa Holly, Ilex cornuta
Curlyleaf Ligustrum, Ligustrum japoninca
Dwarf Boxwood, Boxus sempervirens
Dwarf Buford Holly, Ilex cornuta
Dwarf Nandina, Nandina domestica
Dwarf Yaupon Holly, Ilex vomitoria
Harland Boxwood, Boxus harlandii
Hawthorn, Raphiolepis indica
Inkberry Holly, Ilex glabra
Japanese Holly, Ilex crenata
Otto Laurel, Prunus laurocerasus
Parsons Juniper, Juniperus davurica
Tamarix Juniper, Juniperus sabina
Schipka Laurel, Prunus laurocerasus
7:9.22. Variances. The Board of Zoning Appeals, pursuant to site hardships, may grant a variance. Adequate engineering, landscaping, and arborist plans and specifications are required.
(Ord. of 8-11-05; Ord. No. 2007-25, § 1, 9-13-07)
7:10.1. Requirements for Industrial and Wholesale Buildings. Every industrial and wholesale building hereafter erected shall provide space as indicated herein for loading and unloading of vehicles. The number of off-street loading berths required by this section shall be considered as the absolute minimum, and the developer shall evaluate his own needs to determine if they are greater than the minimum specified by this section. For purposes of this section, an off-street loading berth shall have minimum plan dimensions of 12 feet by 60 feet and 14 feet overhead clearance with adequate means for ingress and egress.
7:10.2. Design of Loading Spaces. Off-street loading spaces shall be designed so that vehicles can maneuver for loading and unloading entirely within the property lines of the premises.
7:10.3. Requirements for Commercial Uses. All retail uses and office buildings with a total floor area of 20,000 square feet shall have one off-street loading berth for each 20,000 square feet.
Game courts, swimming pools, and satellite dish antennas are allowed as accessory uses in residential districts in conjunction with one family, one family mobile home and two-family dwellings, subject to the following provisions:
A.
Game courts, swimming pools, and satellite dish antennas shall be located in the rear yard.
B.
Game courts, swimming pools, and satellite dish antennas shall be set back not less than five feet from any lot line.
C.
Setback requirements for game courts, swimming pools, and satellite dish antennas on corner lots shall be the same as those for accessory buildings.
D.
Game courts shall not occupy more than 65 percent of the rear yard, and swimming pools and satellite dish antennas shall not occupy more than 50 percent of the rear yard.
E.
Lighting for game courts and swimming pools shall have proper shielding from glare.
F.
All satellite dish antennas shall employ (to the extent possible) materials and colors that blend with the surroundings.
7:12.1. Fee. A fee of $150.00 shall be paid to the City Clerk prior to the construction of each new communications tower. If a new antenna is to be constructed, and is to be located upon a pre-existing tower (communications or other), the fee will be waived. The fee will also be waived if proof is provided that $150.00 or more is spent on tower camouflage and concealment, subject to inspection by the Zoning Administrator.
7:12.2. Communication Towers May Be Located in the Following Zoned Areas of Fountain Inn.
A.
Communication towers are permitted as a principal or secondary use in the C-2, S-1, and I-1 Zoning Districts and are subject to the applicable setback requirements of the district in which they are located.
B.
Communication Towers are not permitted in single-family or multifamily residential zoning districts unless they comply with the ancillary use requirements as defined in D, below.
C-1.
Communication towers are permitted as an ancillary or secondary use on nonresidential zoned sites where another use is already established as the principal use of the property, such as a church, shopping center, office building, public utility site, or other similar use; provided the principal use complies with applicable zoning and subdivision regulations. The minimum setbacks shall be in accordance with the district setbacks.
C-2.
Communication towers are permitted as a use permitted by special exception by the Board of Zoning Appeals as an ancillary or secondary use on residentially zoned sites where another use (other than single-family or duplex use) is already established as the principal use of the property, such as a school, church, multifamily residential complex, public utility site, or other similar use; provided the principal use of the property complies with applicable zoning and subdivision regulations. On such residentially zoned sites, the minimum setback of the zoning district in which it is located shall be increased by one foot for each one foot of tower height in excess of 40 feet. The maximum required separation shall be 200 feet.
D.
In the C-1 and OD Zoning Districts, communication towers are permitted as a use permitted by special exception by the Board of Zoning Appeals. On sites zoned C-1 and O-D adjacent to a residential district, the minimum setback of the zoning district I which ii is located is increased by one foot for each one foot of tower height in excess of 40 feet. The maximum required setback is 200 feet. In the PD Zoning District, communication towers are use permitted by special exception by the Fountain Inn Planning Commission.
7:12.3. Application. Each application for a use permitted by special exception for a communication tower shall include the following information in addition to the general information required by this Ordinance.
A.
Site Plan, which shall include the following information:
1.
the location of tower(s), guy anchors (if any);
2.
transmission building and other accessory uses;
3.
parking;
4.
access;
5.
landscaped areas;
6.
fences;
7.
adjacent land uses; and
8.
photos of site and immediate area.
B.
Prior to approving a Site Plan, the Board of Zoning Appeals must make the following findings:
1.
the proposed structure will not endanger the health and safety of residents, employees, or travelers, including, but not limited to, the likelihood of the failure of such structure;
2.
the proposed structure will not impair the use of or prove detrimental to neighboring properties;
3.
the proposed structure is necessary to provide a service that is beneficial to the surrounding community;
4.
the permitted use meets the setback requirements of the underlying zoning district in which it is located;
5.
the proposed tower is located in an area where it does not substantially detract from aesthetics and neighborhood character;
6.
the proposed use is consistent with potential land uses recommended in the General Development Plan and Comprehensive Plan for Fountain Inn; and
7.
within residentially zoned areas, communication towers shall not be located within 1,000 feet of another communication tower unless such towers are located on the same property.
7:12.4. Height. Freestanding communication towers shall have a maximum height of 300 feet. For communication towers on buildings, the maximum height shall be 20 feet above the roofline of buildings 50 feet or less in height, and 40 feet above the roofline of buildings 50 feet in height or greater.
7:12.5. Landscaping. Landscaping shall be required as follows:
1.
Around the base of the communication tower, outside of the security fence, at least one row of evergreen shrubs capable of forming a continuous hedge at least five feet in height shall be provided, with individual plantings spaced not more than five feet apart.
2.
The landscaping requirements may be waived in whole or in part by the Zoning Administrator if it is determined that existing natural vegetation provides adequate screening or if the Zoning Administrator determines that the landscaping requirements are not feasible due to physical constraints or characteristics of the site on which the communication tower is to be located.
3.
All required landscaping shall be installed according to established planting procedures using good quality plant materials.
4.
A Certificate of Occupancy shall not be issued until the required landscaping is completed in accordance with the approved Landscape Plan and verified by an on-site inspection by the Zoning Administrator or the Zoning Administrator's designee, unless such landscaping has been waived in accordance with (B), above. A temporary Certificate of Occupancy may, however, be issued prior to completion of the required landscaping if the owner or developer provides to the city a form of surety satisfactory to the City Attorney and in an amount equal to the remaining plant materials, related materials, and installation costs as agreed upon by the Zoning Administrator or the Zoning Administrator's designee and the owner or developer.
5.
All required landscaping must be installed and approved by the first planting season following issuance of the temporary Certificate of Occupancy or the surety bond will be forfeited to Fountain Inn.
6.
The owners and their agents shall be responsible for providing, protecting, and maintaining all landscaping in healthy and growing condition, replacing unhealthy or dead plant materials within one year or by the next planting season, whichever first occurs. Replacement materials shall conform to the original intent of the Landscape Plan.
7.
Eight-foot high fencing shall be provided and well-maintained around the communication tower and any associated building.
7:12.6. Illumination. Communication towers shall only be illuminated as required by the Federal Communications Commission and/or Federal Aviation Administration.
7:12.7. Signage. A single sign for the purposes of emergency identification shall be permitted. The permitted sign shall not exceed two square feet in area and shall be attached to the fence surrounding the tower.
Under no circumstances shall any signs for purposes of commercial advertisement be permitted.
7:12.8. Access to Site. Each parcel on which a communication tower is located must have access to a public road 20 feet in width.
7:12.9. General Requirements. Communication towers, in addition to the requirements set forth above, must also comply with the following requirements:
1.
A statement shall be submitted from a registered engineer that the NIER (Non-ionizing Electromagnetic Radiation) emitted therefrom does not result in a ground level exposure at any point outside such facility which exceeds the lowest applicable exposure standards by any regulatory agency of the United States Government or the American National Standards Institute. For roof mounted communication towers, the statement regarding the NIER shall address spaces which are capable of being occupied within the structure on which the communication tower is mounted.
2.
Communication towers and their foundations shall meet the requirements of the Standard Building Code for wind and seismic loads. The requirements for new towers include those for loads which would enable the collocation of two additional antennas. Drawings and calculations shall be prepared and sealed by a South Carolina Registered Professional Engineer and shall be submitted with the building permit application.
3.
All communications towers and supporting facilities shall be subject to periodic reinspection(s) by the Codes Department. If any additions, changes, or modifications are proposed to the site or its components, proper plans, specifications, and calculations shall be submitted for permit approval to the Zoning Administrator.
Prototypical drawings indicating various types of antenna(s) to be located on the communication tower may be submitted at the time of the appropriate permit application. Additional antennas may be added to the communication tower without additional permits or inspections so long as electrical wiring is not required.
4.
Unless otherwise required by the F.C.C. or the F.A.A., communication towers shall be light grey in color.
5.
Towers shall be constructed with three times the capacity of intended use in order that secondary users could lease the balance of the tower capacity at a reasonable rate.
6.
A communication tower must be removed within 120 days of the date such tower ceases to be used for communication purposes.
7.
Communication towers shall not be located within the viewshed of any point within a scenic corridor, a historic preservation district, or from any site on the National Historic Register. For the purposes of this Ordinance, the viewshed sight distance is one mile from the outermost boundary of the corridor or historic property.
7:13.1. Intent. This section is established to accomplish three goals:
1.
To provide protection to residents from poorly designed and aesthetically unattractive commercial developments;
2.
To provide the developer with clear standards that their projects must adhere to; and
3.
To create design standards without compromising creativity in design for the developer.
To accomplish these goals, this section places regulations on exterior wall design, materials, and colors; roof materials and colors; entrances; pedestrian accessibility; landscaping requirements; and screening of outdoor storage, disposal, HVAC equipment and loading operations.
7:13.2. Application. This section applies to all commercial structures within the following zoning districts:
O-D, Office District;
C-1, Commercial District;
C-2, Commercial District;
NC, Neighborhood Commercial District;
S-1, Service District (pertaining to any commercial uses that could be permitted in the Commercial Zoning Districts);
POD, Planned Office District; and
FRD, Flexible Review District.
For the NC, Neighborhood Commercial District, design requirements specified during their respective plan review processes may exceed the standards specified in this section.
7:13.3. Design Standards. The following standards are intended to be used as a design aid by developers proposing retail developments and as an evaluation tool by the Fountain Inn Planning Commission during their review processes.
7:13.4-1. Aesthetic Character.
A.
Exterior Walls. Intent: Buildings should have architectural features and patterns that provide visual interest and be consistent with the community's identity, character, and scale. The intent is to encourage a more human scale that residents of Fountain Inn will be able to identify with their community. The resulting scale will ensure a greater likelihood of reuse of structure by subsequent tenants. The elements in the following standard should be integral parts of the building fabric, not superficially applied trim, graphics, or paint.
Standard: Developments with an exterior wall over 100 feet in linear length visible from any private or public right-of-way shall incorporate three different patterned changes at an interval of no more than 30 feet, either horizontally or vertically. Each pattern change must be at least one foot wide. Patterned changes may include the following: color change, texture change, material change, and wall projections or recesses, at least two feet in depth. At least one of the changes must occur horizontally.
B.
Roofs.
Intent: Variations in rooflines should be used to add interest to and reduce the scale of buildings. Roof features should compliment the character of adjoining neighborhoods.
Standard: Rooflines shall be varied with a change in height every 100 linear feet in the building length. Parapets, mansard roofs, gable roofs, hip roofs, or dormers shall be used to conceal flat roofs and roof top equipment from public view. Alternating lengths and designs may be acceptable and can be addressed in the Development Plan.
C.
Materials.
Intent: Exterior building materials comprise a significant part of the visual impact of a building. Therefore, they should be aesthetically pleasing and compatible with materials and colors used in adjoining neighborhoods.
Standard: Predominant exterior building materials shall be of high quality materials. These include, without limitation: brick, wood, sandstone, other native stone, and tinted, textured, or split-faced masonry units.
Predominant exterior building materials shall not include the following: smooth-faced concrete block, tilt-up concrete panels, and pre-fabricated steel panels.
D.
Entryways.
Intent: Entryway design elements and variations should provide orientation and aesthetically pleasing character to the building. The standards identify desirable entryway design features.
Standard: Each building on a site shall have clearly defined, highly visible customer entryways featuring no less than three of the following:
1.
canopies or porticos,
2.
overhangs,
3.
recesses/projections,
4.
arcades,
5.
raised corniced parapets over the door,
6.
peaked roof forms,
7.
arches,
8.
outdoor patios,
9.
display windows,
10.
planters,
11.
wing walls; and
12.
any other architectural detail or feature that accentuates the entryways for the public.
7:13.4-2. Site Design and Relationship to the Surrounding Community.
A.
Entrances for Larger Buildings.
Intent: Larger commercial buildings should feature multiple entrances. Multiple building entrances reduce walking distances from cars, facilitate pedestrian and bicycle access from public sidewalks, and provide convenience where certain entrances offer access to individual stores, or identified departments in a store. Multiple entrances also mitigate the effect of the unbroken walls and neglected areas that often characterize building facades that face bordering land uses.
Standard: Each commercial structure exceeding 25,000 square feet of space shall have two entrances. The two entrances must be located on two different exterior walls that would be most appropriate for access from adjacent parking areas
B.
Windows for Smaller Buildings.
Intent: Smaller retail stores provide an intimate retail experience. It is not uncommon for small retail stores to construct plain buildings with little or no architectural details to provide a sense of human scale. Windows and window displays of such stores should be used to contribute to the visual interest of exterior facades.
Standard: Each commercial structure not exceeding 25,000 square feet shall incorporate windows into their design. Each exterior wall with a customer entrance shall have transparent windows between the height of three feet and eight feet above the walkway grade for no less than 60 percent of the horizontal length of the exterior wall.
Windows shall be recessed and should include visually prominent sills, shutters, or other forms of framing.
C.
Outdoor Storage, Trash Collection, and Loading Areas.
Intent: Loading areas and outdoor storage areas exert visual and noise impacts on surrounding neighborhoods. The disturbances created by commercial uses are commonly associated with these specific activities and locations. As such, they should be carefully considered when developed.
Standards: Areas for outdoor storage, truck parking, trash collection and compaction, loading, or any other similar activities shall:
1.
not be visible from any public or private right-of-way;
2.
not be located within 20 feet of any public or private street, sidewalk, or internal pedestrian way; and
3.
be screened or incorporated with materials and in a manner consistent with the rest of the site, thereby reducing the presence of them.
These standards are subject to the provisions in Article 7, Section 9.14.
D.
Pedestrian Flows.
Intent: Pedestrian accessibility opens auto-oriented developments to the neighborhood, thereby reducing traffic impacts and enabling the development to project a friendlier, more inviting image. This section sets forth standards for public sidewalks and internal pedestrian circulation systems that can provide user-friendly pedestrian access as well as pedestrian safety, shelter, and convenience within the site.
Standards: Sidewalks at least six feet in width shall be provided along all sides of the lot that abut a public or private right-of-way. The Fountain Inn Planning Commission may waive this requirement as part of the development plan if it finds that the sidewalks will likely not be used (subject to the provisions in Section 2, 9.4 "Sidewalks" of the Land Development Regulations).
Customer entrances to all buildings shall be easily and safely accessible to pedestrians from the public sidewalk through internal sidewalks, pedestrian walkways, or painted crosswalks, no less than five feet in width. At a minimum, walkways shall connect focal points of pedestrian activity such as, but not limited to, transit stops, street crossings, building and store entry points, and shall feature adjoining landscaped areas that include trees, shrubs, benches, flower beds, ground covers, or other such as arcades or entryways are part of the exterior wall.
Pedestrian walkways or sidewalks, no less than five feet in width, shall be provided along the full length of the building along any exterior wall featuring a customer entrance, and along any exterior wall abutting public parking areas. Such pedestrian walkways or sidewalks shall be located at least six feet from the exterior wall of the building to provide planting beds for foundation landscaping except where features, such as arcades or entryways, are part of the exterior wall.
Pedestrian walkways shall be distinguished from driving surfaces through the use of durable, low maintenance surface materials, such as pavers, bricks, or scored concrete, to enhance pedestrian safety and comfort as well as the attractiveness of the walkways.
E.
Central Features and Community Spaces.
Intent: Buildings should offer attractive and inviting pedestrian scale features, spaces and amenities. Entrances and parking lots should be configured to be functional and inviting with walkways conveniently tied to logical destinations. Bus stops and drop-off/pick-up points should be considered as integral parts of the configuration. Pedestrian ways should be anchored by special design features such as towers, arcades, porticos, pedestrian light fixtures, bollards, planter walls, and other architectural elements that define circulation ways and outdoor spaces. The features and spaces should enhance the building and the center as integral parts of the community fabric.
Standards: Each structure with greater than 25,000 square feet of commercial space shall contribute to the establishment of enhancement of community and public spaces by providing one amenity per 25,000 square feet of commercial space (up to a maximum of two amenities) from the following list:
1.
patio/seating area,
2.
pedestrian plaza with benches,
3.
transportation center,
4.
window shopping walkways,
5.
outdoor play area,
6.
kiosk area,
7.
water feature,
8.
clock tower,
9.
steeple, or
10.
other deliberately shaped area, focal feature, or amenity that, in the judgment of the Fountain Inn Planning Commission adequately enhances such community and public spaces.
Each amenity shall have direct access to the public sidewalk network and such features shall not be constructed of materials that are inferior to the materials of the building and landscaping.
Although the City of Fountain Inn does not currently maintain a public bus system, all sites with more than 50,000 square feet of commercial space shall provide or be designed to accommodate possible (future) bus service and the growing number of private bus services (i.e., nursing home/assisted living, etc.).
7:13.5. Curb Cuts.
Intent: To have safe and efficient traffic flow accessing roadways. Better access management will help increase sight visibility and reduce traffic accidents.
Standards: Street, driveway, or other access separation along state and federal highways shall be in accordance with the SCDOT, "Access and Roadside Management Standards."
Table 1. Maximum Number of Driveways Per Frontage
*On frontages of 200 feet or less, a pair of one-way driveways may be substituted only if the internal circulation on the site is compatible with the one-way driveways and wrong-way movements on the driveways are rendered impossible or extremely difficult for motorists.
Table 2. Recommended Minimum Spacing for Driveways.
When possible, new development should design vehicular access in a way that encourages the use of shared driveway access to a public roadway. This can be accomplished with double or one-way entrances. Driveways may also provide linkage between lots. Linkage will connect adjoining lots thus providing traffic movement from one development to another.
7:13.6. Lighting. Intent: To increase aesthetic values and safety for the development and application of effective, energy efficient lighting practices that minimize night sky glow, glare, and light pollution.
7:13.6-1. General Standards for Outdoor Lighting. The maximum light level permissible at a residential property line shall not exceed 0.5 foot-candles where non-residential uses abut residential uses, and shall not exceed two foot-candles at the road right-of-way or at a non-residential property line.
7:13.6-2. Flood Lighting. All flood lights shall be installed with the fixture aimed downward at least 45 degrees below horizontal. Flood lights shall be orientated or shielded so that the source of the light is not visible from the road right-of-way or from any residential use.
7:13.6-3. Wall Packs, Ground Mounted Lighting, and Sign Lighting. All wall packs shall be cutoff type fixtures. All external lighting fixtures on a sign or ground mounted luminaries lighting building facades, steeples, trees, billboards, monument signs, flags, and other like items shall not exceed 175 watts. Such lighting fixtures shall be oriented or shielded so that the source of the light is not visible from the road right-of-way or from any residential use. The light output from an internally illuminated sign shall not exceed the limits of Section 7:13.6-1 herein.
7:13.6-4. Parking Lots and Outdoor Merchandise Display Areas. All parking lot and merchandise display area lighting fixtures, other than floodlights permitted under 7:13.6-2 herein, shall be cutoff fixtures and shall be mounted at a height not greater than 32 feet above finished grade. Lighting levels in a parking lot shall not exceed 20 foot-candles, and merchandise display area lighting shall not exceed 30 foot-candles, initial level.
7:13.6-5. Vehicular Canopy Lighting. Lighting fixtures under a vehicular canopy shall be cutoff fixtures or fixtures fully recessed into the canopy. Lighting levels under the canopy shall not exceed 30 foot-candles, and the source of the light shall not be visible from the road right-of-way or from any residential property.
7:13.6-6. Outdoor Playing Field or Performance Area Lighting. All outdoor playing field or performance area lighting fixtures shall be equipped with louvers, shields, or other devices to control glare and to direct lighting at the playing field or performance area. Lighting fixtures shall be mounted at a height not greater than 80 feet above the playing field or performance area. Lighting of the playing field or performance area shall be extinguished no later than one hour after the event.
7:13.6-7. Permits. A Lighting Plan shall be included with all building permit applications for new construction. Such plan shall include specifications of the lighting fixtures to be used, a detailed Site Plan which shows the location of all existing and proposed improvements, the location of the lighting fixtures, and a point-by-point foot-candle array. The Zoning Administrator may waive any or all of the above permit requirements, and accept a certification by a qualified design professional that the Lighting Plan complies with all of the requirements contained herein. These same plan requirements shall apply when new lighting fixtures are being erected on an existing developed property.
7:13.7. Administration.
Intent: To insure compliance with this Ordinance, plans must follow the appropriate criteria of the Ordinance and must be submitted in such a manner as to provide a sufficient amount of time for review.
Standards: The developer or property owner must submit a Development Plan to The Zoning Administrator. The Development Plan shall include the following:
1.
A boundary survey with vicinity map, title block, scale, and north arrow, identification of the total number of acres of overall site, location and size of each structure; and
2.
As many written explanations, diagrams, and/or examples as necessary to demonstrate compliance with all sections of this Ordinance.
The Fountain Inn Planning Commission shall review and take action on the submitted Development Plan within 45 days after receipt of the plan by Fountain Inn Public Works Department.
This review and action shall take place during the Fountain Inn Planning Commission's regular meeting. At that time, the Fountain Inn Planning Commission may consider input from the Zoning Administrator and Greenville County Planning Commission staff. When reviewing a Development Plan, the Fountain Inn Planning Commission may waive any part of Section 7:13, Commercial Design Standards, if they find that compliance with the section is impractical or impossible.
Upon approval from the Fountain Inn Planning Commission, the developer or property owner must not deviate from the plans. If circumstances prevent the compliance with the approved plan, the developer may submit a revised Development Plan to the Fountain Inn Planning Commission for reevaluation.
If the submitted Development Plan is not approved, the applicant may submit a new Development Plan to be reviewed during the next regular meeting of the Fountain Inn Planning Commission. If the new Development Plan is not approved, a review fee of $75.00 will apply for any subsequent submittals.
All commercial establishments subject to this Ordinance must adhere to the Development Plan as approved by the Fountain Inn Planning Commission.
Any failure to adhere to the Development Plan as approved by the Fountain Inn Planning Commission or violation of this Ordinance shall be a misdemeanor. The Zoning Administrator has a duty to enforce compliance with this Ordinance.
The City of Fountain Inn may apply to the Court of Common Pleas for an injunction directing a developer or property owner to cease any violation of this Ordinance.
All construction of improvements shown or described in the Development Plan shall comply with all applicable codes and Ordinances of the City of Fountain Inn.
Any interested party shall have the right to appeal any decision of the Fountain Inn Planning Commission to the Court of Common Pleas by filing a Notice of Appeal with the Clerk of Court for Greenville County within 15 days of the receipt of the written decision of the Fountain Inn Planning Commission.
If the determination by the Court of Common Pleas is that the decision is supported by substantial evidence and is in accord with applicable law, then the appeal shall be dismissed. If the Court of Common Pleas determines that the decision is not supported by substantial evidence or is not in accord with applicable law, the decision shall be reversed and relief shall be granted as may be appropriate.
Any written decisions of the Fountain Inn Planning Commission shall be considered a final determination unless the written decision is appealed pursuant to this Ordinance.
(Ord. of 9-14-06; Ord. No. 2007-25, § 2, 9-13-07; Ord. No. TX 2016-001, § 2, 8-11-16)
Editor's note— Subsection 7:13.2 has been amended at the discretion of the editor to reflect changes instituted by an Ordinance of September 14, 2006.
Pursuant to S.C. Code. The proposed site must not be granted if it is to be within (1) mile of the Central Business District. This distance must be computed by following the shortest route of ordinary pedestrian or vehicular travel along the public thoroughfare from the nearest point of the Central Business District.
7:14.1. Other Requirements
(A)
The Fireworks Stand Operator must allow and cooperate with on-site inspections as considered necessary by the City and must address by corrective action the noncompliance items as identified by the City. Firework Sales are permitted December 18 until midnight January 1 and from June 27 through midnight July 4. However, portable stands may be erected six business days prior to the start of the designated periods but must be removed within six business days after the last day of the designated periods.
(B)
The City may revoke, suspend, or refuse to issue or renew a license pursuant to this chapter and invoke a monetary penalty upon evidence as determined by the city that the licensee of the facility under this chapter has:
(1)
Obtained a Firework Stand license through fraud or deceit; or
(2)
Has violated any applicable law or regulation.
(Ord. of 11-13-06)
7:15.1. Findings. As an incident to the adoption of this Ordinance, the Fountain Inn City Council makes the following findings:
(1)
The South Carolina General Assembly has enacted the "Vested Rights Act" which is codified as S.C. Code, § 6-29-1520 et seq., as amended, (the "Act").
(2)
The Act requires local governments to enact Ordinances implementing the provisions of the Vested Rights Act on or before July 1, 2005. The Act authorizes local governments to establish a procedure for the vesting of rights in certain development plans, and provides that local governments that do not pass Ordinances implementing a procedure for the establishment of vested rights will be subject to the requirements of S.C. Code, § 6-29-1560 of the Act, under which a landowner has a vested right to proceed in accordance with an approved site specific development plan upon the terms and conditions and subject to the requirements and limitations of S. C. Code, § 6-29-1560(A), which section substitutes statutory conditions for vesting, reducing local control and flexibility.
(3)
Council finds that the affected Fountain Inn Ordinances should conform to the requirements of the Vested Rights Act; in a manner to facilitate the administration of the City of Fountain Inn zoning and land use codes, Ordinances and regulations.
7:15:2. Definitions. The following words and terms shall have the following meaning as used in this article:
Approved or approval means a final action by the county governing body or an exhaustion of all administrative remedies from decisions of the City of Fountain Inn zoning, planning or land use officials, boards or commissions which results in the authorization of a site specific development plan or a phased development plan.
Building permit means a written license or permit issued by a local building official that authorizes the construction or renovation of a building or structure at a specific location.
Conditionally approved or conditional approval means an interim action taken by the Fountain Inn governing body or the Fountain Inn Planning Commission, or Board of Zoning Appeals that provides authorization for a site specific development plan or a phased-development plan which is subject to further approval.
Landowner means an owner of a legal or equitable interest in real property, including the heirs, devisees, successors, assigns and personal representatives of the owner. "Landowner" may include a person holding a valid option to purchase real property pursuant to a contract with the owner to act as his agent or representative for purposes of submitting a proposed site specific development plan or a phased development plan pursuant to this article.
Local governing body means:
(a)
The governing body of Fountain Inn; or
(b)
A county body authorized by statute or by the governing body of the City of Fountain Inn to make land use decisions.
Person means an individual, corporation, business or land trust, estate, trust, partnership, association, two or more persons having a joint or common interest, or any legal entity as defined by the laws of South Carolina.
Phased development plan means a development plan submitted to the local governing body or body authorized by the local governing body to make land-use decisions that shows the types and density or intensity of uses for a specific property or properties to be developed in phases, but which do not satisfy the requirements for a site specific development plan.
Real property or property means all real property that is subject to the land-use and development Ordinances or regulations enacted, approved or promulgated by the Fountain Inn City Council, and includes the earth, water and air above, below or on the surface, and includes improvements or structures customarily regarded as part of real property.
Site specific development plan means a development plan submitted to the local governing body or a body authorized by the local governing body to make land-use decisions by a landowner describing with reasonable certainty the types and density or intensity of uses for a specific property or properties. The plan may be in the form of, but is not limited to, the following plans or approvals: planned unit development; subdivision plat; preliminary or general development plan; variance, conditional use or special use permit plan; conditional or special use district zoning plan; or other land-use approval designations as are used by the City of Fountain Inn with regard to submitted plans.
Vested right means the right to undertake and complete the development of property under the terms and conditions of a site specific development plan or a phased development plan as provided in this Ordinance, the Vested Rights Act and in the City of Fountain Inn Land Development Ordinances or regulations.
7:15.3. Establishment of a Vested Right. A vested right as defined herein is established for two years upon the approval of a site specific development plan.
The landowner of real property with a vested right may apply before the end of the vesting period but not thereafter to the Fountain Inn Planning Commission for an annual one-year extension of the vested right. The Fountain Inn Planning Commission must approve applications for at least five annual extensions of the vested right if a timely application has been filed with the Planning Commission unless an amendment to land development Ordinances or regulations has been adopted that prohibits such approval. If no timely application is made by the landowner to the Fountain Inn Planning Commission for an annual extension, the vesting period or annual extension applicable to such real property shall expire at the end of the vesting period or the last annual extension granted thereof.
The Fountain Inn Planning Commission may, but is not required, to provide for the establishment of a two-year vested right in a conditionally approved site specific development plan. No two-year vested right is established in a conditionally approved site specific development plan unless such vested right is specifically and expressly approved by the Fountain Inn Planning Commission in writing when a site specific development plan is conditionally approved.
The Fountain Inn Planning Commission may, but shall not be required, to approve the establishment of a vested right in an approved or conditionally approved phased development plan for a period not to exceed five years.
No vested right in a site specific development plan shall attach or be established until plans have been received, all required approvals have been given or granted, and all fees have been paid in accordance with the procedures outlined in this code. No vested right attaches or is established until a final decision has been rendered favorable to the applicant on all administrative appeals.
The Fountain Inn Zoning Board of Appeals is not authorized to grant or approve a vested right and no vested right shall be established, created or accrue as a result of any decision of the Zoning Board of Appeals.
7:15.4. Conditions and limitations on vested right. A vested right established by this article and in accordance with the standards and procedures in Fountain Inn zoning, land development and land-use Ordinances and regulations is subject to the following conditions and limitations.
(1)
The form and content of a site specific development plan submitted by a landowner must conform and comply with all applicable Fountain Inn zoning, planning, stormwater management and sediment control, building, electrical, mechanical, life safety, fire and other land-use codes, Ordinances and regulations;
(2)
No vested right in a site specific development plan shall be established except in conformity with Fountain Inn zoning, planning, stormwater management and sediment control, building, electrical, mechanical, life safety, fire and other land-use codes, Ordinances and regulations;
(3)
If the Fountain Inn Planning Commission approves a vested right for a phased development plan, a site specific development plan shall be required for approval with respect to each phase in accordance with regulations in effect at the time of vesting.
(4)
A vested right established under a conditionally approved site specific development plan or conditionally approved phased development plan may be terminated by the Fountain Inn Planning Commission upon its determination, following notice and a public hearing, that the landowner has failed to meet the terms of the conditional approval;
(5)
A vested right established in accordance with the provisions of this article shall be vested upon approval by the Fountain Inn Planning Commission of the site specific development plan or phased development plan that authorizes the developer or landowner to proceed with investment in grading, installation of utilities, streets and other infrastructure and to undertake other specific expenditures necessary to prepare for application for a building permit. No developer or landowner shall proceed with investment in grading, installation of utilities, streets or other infrastructure, or shall undertake other significant expenditures necessary to prepare for application for a building permit before a site specific development plan or phased development plan authorizing such improvements and expenditures has been approved by the Fountain Inn Planning Commission. No investments in grading, installation of utilities, streets, or other infrastructure, or other significant expenditures shall give rise to or establish a vested right until the Fountain Inn Planning Commission has approved the site specific development plan or phased development plan that authorizes the developer or landowner to proceed with improvements or undertake other significant expenditures on the real property which is proposed for development. Any vested right so granted is subject to all land development regulation requirements, including, but not limited to, meeting all financial security requirements prior to acceptance of final plats.
A site specific development plan for which a variance, regulation or special exception is necessary, does not qualify and may not claim or receive vested right status unless and until the variance, regulation or special exception is obtained. A phased development plan for which a variance, regulation or special exception is necessary does not qualify and may not obtain a vested right until the variance, regulation or special exception is obtained.
A vested right for a site specific development plan expires two years after vesting; provided, however, that the landowner of real property with a vested right may apply to the Fountain Inn Planning Commission before the end of the vesting period for an annual extension of the vested right for a period of one year. If a timely application is made, the Planning Commission must approve applications for no more than five successive annual extensions unless an amendment to land development Ordinances or regulations has been adopted that prohibits approval of such annual extension applications. The Fountain Inn Planning Commission shall designate the vesting point for a phased development plan as the date of approval of the phased development plan. The Fountain Inn Planning Commission may extend the time for a vested site specific development plan to a total of five years upon a determination that there is just cause for the extension and that the public interest is not adversely affected. Upon expiration of the vested right, a building permit may be issued for development only in accordance with applicable land development Ordinances and regulations and may require new plan submissions in accordance with the applicable Ordinances and regulations.
A vested site specific development plan or a vested phased development plan which has been approved by the Fountain Inn Planning Commission may be subsequently amended if the amendments are approved by the Fountain Inn Planning Commission pursuant to the provisions of applicable Fountain Inn Land Development Ordinances and Regulations.
A validly issued building permit does not expire or is not revoked upon expiration or termination of a vested right, except for public safety reasons or as prescribed by the applicable building code.
A vested right to a site specific development plan or phased development plan may be revoked by the Fountain Inn Planning Commission upon its determination, after notice and a public hearing, that there was a material misrepresentation by the landowner or substantial non-compliance with the terms and conditions of the original or amended approval.
A vested site specific development plan or vested phased development plan is subject to later enacted federal, state or local laws or Ordinances adopted to protect public health, safety and welfare, including, but not limited to, building, fire, plumbing, electrical and mechanical codes and non-conforming structure and use regulations which do not provide for the grandfathering of the vested right. The issuance of a building permit vests the specific construction project authorized by the building permit to the building, fire, plumbing, electrical and mechanical codes in force at the time of the issuance of the building permit.
A change in the zoning district designation or land-use or regulations made subsequent to vesting that affects real property does not operate to affect, prevent or delay development of the real property under a vested site specific development plan or vested phased development plan without the consent of the landowner.
If real property having a vested site specific development plan or vested phased development plan is annexed, the governing body of the municipality to which the real property has been annexed must determine, after notice and public hearing in which the landowner is allowed to present evidence, if the vested right is effective after the annexation.
The Fountain Inn City Council, the Fountain Inn Planning Commission and local zoning, planning and codes officials must not require a landowner to waive his vested rights as a condition of approval or conditional approval of a site specific development plan or phased development plan.
7:15.5. Nature of Vested Right. A vested right pursuant to this Ordinance is not a personal right but attaches to and runs with the applicable real property. The landowner and all successors to the landowner who secure a vested right pursuant to this article may rely upon and exercise the vested right for its duration, subject, however, to applicable federal, state and local laws adopted to protect public health, safety and welfare, including, but not limited to, building, fire, plumbing, electrical and mechanical codes and non-conforming structure and use regulations which do not provide for grandfathering of the vested right. Nothing contained herein shall preclude judicial determination that a vested right exists pursuant to other statutory provisions.
7:15.6. Landowner Rights Deemed Vested. The landowner's rights are considered vested in the types of land use and density or intensity of uses defined in the development plan, and the vesting is not affected by later amendments to a zoning Ordinance or land-use or development regulation if the landowner:
(a)
Obtains or is the beneficiary of a significant affirmative government act that remains in effect allowing development of a specific project.
(b)
Relies in good faith on the significant affirmative government act; and
(c)
Incurs significant obligations and expenses in the diligent pursuit of the specific project in reliance on the significant affirmative government act.
7:15.7. Affirmative Government Acts. For purposes of this section, the following are significant affirmative governmental acts allowing development of a specific project:
(a)
The local governing body has accepted exactions or issued conditions that specify a use related to a zoning amendment;
(b)
The local governing body has approved an application for a rezoning for a specific use;
(c)
The local governing body has approved an application for a density or intensity of use;
(d)
The local governing body or zoning board of appeals has granted a special exception or use permit with conditions;
(e)
The local governing body has approved a variance;
(f)
The local governing body or its designated agent has approved a preliminary subdivision plat, site plan or plan of phased development for the landowner's property and the applicant diligently pursued approval of the final plat or plan within a reasonable period of time under the circumstances; or
(g)
The local governing body or its designated agent has approved a final subdivision plat, site plan or plan of phased development for the landowner's property.
(Ord. of 7-13-06)
7:16:1. CONVENTIONAL RESIDENTIAL DEVELOPMENT.
7:16:1.1. Conventional Residential Development. A conventional residential development is one in which all land area within the development is devoted to building lots that comply with the minimum lot size limits of the residential zoning district. Unless otherwise expressly declared and approved at the time of preliminary plat approval, all residential subdivisions shall be considered conventional developments.
7:16:1.2. Permitted Uses. Permitted uses are defined as those uses permitted outright or by special exception in Article 5.
7:16:1.3. Minimum Lot Area. The minimum lot areas per dwelling unit for each zoning district are listed in Table 7.1 unless otherwise required by DHEC.
7:16:1.4. Calculating Minimum Lot Area. When calculating the minimum lot area within all residential districts, the area adjacent to a lot designated as being city owned right-of-way may be included in the computation and determination of the minimum lot area required under this section. In the case of multiple lot frontages, only the single lot frontage with the greatest length shall be used in computing the minimum lot area.
This provision does not diminish the city's rights and privileges to use the right-of-way nor does it confer any additional rights or privileges concerning the city owned right-of-way to any adjacent landowner.
7:16:1.5. Lot Area for Non-residential Uses in Single Family Districts. For nonresidential buildings located in single-family districts, the lot area shall be adequate to provide the yard areas required by this section and the off-street parking and loading areas required in Section 7.9 and 7.10, Off-street Parking and Off-street Loading, provided, however, that the lot area for each nonresidential building shall not be less than 30,000 square feet.
7:16:1.6. Setback/Yard Requirements. Setbacks from existing roads will be consistent with the requirements outlined in the appropriate zoning district and listed in Section 7:3, Table 7.3 and Table 7.4.
7:16:1.7. Riparian Buffers. Riparian buffers shall be provided along all classes of streams in accordance with the Greenville County Soil and Water Conservation Commission Storm Water Management Design Manual.
7:16:2. OPEN SPACE RESIDENTIAL DEVELOPMENT.
7:16:2.1. Intent. An open space residential development is a residential subdivision in which dwellings are situated on the most developable portion of the site in exchange for the preservation of substantial amounts of open space for recreational, environmental, and ecological reasons. The purpose of open space development is to provide a method of land development that permits variation in lot sizes without an increase in the overall density of population or development. This allows the subdivision of land into lots of varying sizes which will provide home buyers a choice of lot sizes according to their needs, while at the same time, preserving open space, tree cover, scenic vistas, natural drainage ways, and outstanding natural topography. Such measures prevent soil erosion and flooding by allowing development to occur according to the nature of the terrain; provide larger open areas with greater utility for rest and recreation; and encourage the development of more attractive and economical site design.
The developer is able to provide a more economical product to the consumer by reducing the overall cost of required sewer, roads, and other infrastructure. Open space development facilitates the economical and efficient provision of public services as well. The resultant subdivision benefits from the open, recreational space and by the placement of houses in a manner more conducive to better social interactions among neighbors.
7:16:2.2. Open Space Development General Provisions.
7:16:2.2-1. Minimum Lot Area. There is no required minimum lot area per dwelling unit unless otherwise required by DHEC.
7:16:2.2-2. Yard Requirements. There is no minimum lot width, except as required by DHEC and/or the International Building Code.
7:16:2.2-3. Open Space Ownership, Dedication, and Management.
A.
Ownership of open space. The owner and developer, or subdivider, shall select land dedicated for open space purposes and type of ownership. Type of ownership may include, but is not necessarily limited to, the following:
1.
Other public jurisdictions or agencies, subject to their acceptance;
2.
Non-profit or quasi-public organizations committed to the protection and conservation of open space, subject to their acceptance;
3.
Homeowner or cooperative associations or organizations; or
4.
Shared, undivided interest by all property owners within the subdivision.
B.
Maintenance of open space. The person(s) or entity identified above, as having the right to ownership or control over open space, shall be responsible for its continuing upkeep and proper maintenance.
7:16:2.2-4. Effective Date. In order to use the open space residential development option, developers must declare their intent to use the open space development provisions at the time that the preliminary plat for the subdivision is submitted.
Any subdivision under consideration by the planning commission after the effective date of the ordinance from which this section is derived is eligible to be considered for open space development, based on the requirements herein. Any subdivision approved prior to the effective date of the ordinance from which this section is derived is required to be reconsidered by the city planning commission in accordance with the city land development regulations.
7:16:2.2-4. Overhead Utility Easements. Land that lies within an easement for an overhead utility shall not be included in the calculation for the open space that is required to meet the open space residential development regulations.
7:16:2.3. Reserved.
7:16:2.4. Reserved.
7:16:2.5. Open Space Residential Development, Requirements.
7:16:2.5-1. Minimum Areas. The minimum tract area for an open space residential development shall be five acres. The minimum area shall consist of contiguous parcels, not divided by an existing public or private road or a recreational or navigable body of water.
7:16:2.5-2. Setbacks. No structure shall be erected within 25 feet from any external lot line of any open space residential development, however, where land uses within an open space residential development are the same as uses permitted in the adjoining properties outside the open space residential development, a lesser setback that is consistent with the zoning on the adjoining properties may be permitted. Front setbacks will be consistent with the requirements outlined in the appropriate zoning district and listed in Section 7:3, Table 7.4.
7:16:2.5-3. Permitted Uses.
Single-Family Detached Dwellings
Single-Family Zero Lot Line Dwellings
Single-Family Attached Dwellings, except in R-15 and R-12 Residential Districts
7:16:2.5-4. Single-Family Attached. Single-family attached dwellings are permitted subject to the following requirements:
A.
A maximum of 20 percent of the total number of dwelling units may be single-family attached (duplex, triplex and quadraplex). Any attached unit must be a townhouse and excludes condominiums.
B.
Attached units must be contained within the subdivision and not part of any exterior lot except in those areas where exterior lots are adjacent to land zoned for commercial, office or multifamily development.
C.
Attached units may be a duplex, triplex, or quadraplex and shall not exceed more than four attached units per structure.
D.
Attached units shall not be located on preexisting platted lots within a subdivision.
7:16:2.5-5. Permitted Density. The overall number of dwellings allowed in an Open Space Development may be found in Table 7.1.
7:16:2.5-6. Required Common Open Space. In an open space development, a minimum percentage of the total acreage must be designated as open space. The required open space in may include both developable and undevelopable land, as defined in Article 4, Definitions. Of that land dedicated for open space in the R-M, R-6, R-7.5, R-10, R-12, and R-15 districts, a minimum of 50 percent of the total open space must be considered developable land, as defined in Article 4, Definitions.
Not more than 50 percent of the required common open space may be used for active recreation, including uses such as playgrounds, golf courses, and multi-use ball fields, pickleball courts, community swimming pools, clubhouses and similar uses. Recreation areas (passive or active) used to meet the common open space requirements may not contain more than 5% impervious surfaces (e.g. paved walking paths, decks, and recreational structures including shelters, concrete pads, etc.).
Land dedicated as common open space shall be of meaningful proportions and dimensions so as to be consistent with the purpose and intent of this section. The common open space shall be contiguous to the extent practicable. At least 50% of the required common open space shall be accessible and have at least 50 feet of frontage on at least one public street within the development. Recreational lakes or ponds used for storm water management may be included in the land designated as common open space. Fenced detention or retention areas used for storm water management shall not be included in the calculation of required common open space.
7:16:2.6. Minimum Lot Area/Permitted Densities for Single-Family Residential. The minimum lot area for conventional zoning, and densities (units/acre) provided for in each open space development option may be found in the following table. All densities are based on the total number of dwelling units divided by the total number of acres (both developed land and undeveloped land).
7:16:3. DETERMINING SETBACK LINES IN ALL DISTRICTS. All setback lines adjacent to a public right-of-way are measured from the edge of the public right-of-way. When the right-of-way is not known, the setback shall be measured from the edge of the pavement or back of the curb, if present, and each required setback shall be increased by a minimum of ten feet. (See Graphics 1, 2, and 3 herein)
For additional minimum setback requirements, refer to the Transportation Corridor Preservation Ordinance #4326 (Appendix C.).
7:16:3.1. Setbacks/Height.
7:16:3.2. Nonresidential Setbacks in Single-Family Districts.
7:16:3.3. Calculating Minimum Front Setback. The minimum depth of the front yard measured from the street right-of-way line shall be 20 feet on a residential service street, 30 feet on a collector street, and 50 feet on an arterial street, except that when a right-of-way has not been established or is not known, the setback shall be measured from the edge of the pavement or back of the curb, if present, and each required setback shall be increased by a minimum of ten feet.
7:16:3.4. Side Setbacks in Single-family Residential Districts. For residences, accessory buildings, and nonresidential uses located on corner lots, the minimum side yard width measured from the street right-of-way line shall be 20 feet on a residential service street, 30 feet on a collector street, and 40 feet on an arterial street.
The rear and one side setback may be reduced to zero feet for zero lot line dwellings located in single-family districts and are subject to the adopted building code.
Graphic 1
Graphic 2
Setbacks are measured from the foundation wall. Overhangs, architectural embellishments, etc. may encroach the setback a maximum of two feet. Cantilevers consisting of roofed over space may not encroach the setback line. Setback is not measured from stoops, porches, and landings provided they do not occupy more than 20 percent of any exterior wall.
Accessory buildings may be located in the rear yard or side yard provided that they are set back not less than five feet from any lot line and occupy not more than 20 percent of the rear yard.
Graphic 3
7:16:3.5. Reduction of Rear Setback. The rear setback may be reduced to zero for the express purpose of locating a boathouse along the shore of a lake or navigable body of water.
7:16:3.6. Additional Setback in Commercial Districts. On corner lots and lots adjacent to any residential district all commercial buildings and structures shall be set back not less than 15 feet from property lines. When a side yard is provided it shall be not less than five feet in width.
Commercial gasoline islands and canopies shall be set back from all street right-of-way lines not less than 15 feet.
7:16:3.7. Height. All buildings may exceed the height limitations of the district if the minimum depth of rear yards and the minimum width of side yards required in the district regulations are increased one-foot for each three feet by which the height of such building exceeds the prescribed height limit.
Chimneys, elevators, poles, spires, tanks, towers, and other projections not used for human occupancy may exceed the district height limit.
7:16:3.8. Reduction in Setback in NC, POD, and OD Districts. No structure shall be erected within 25 feet from any side lot line or 20 feet from any rear lot line of any neighborhood commercial district and/or planned office development district. However, where land uses within the NC, POD, and OD districts are the same as uses permitted on adjoining properties, the side and rear setbacks adjoining those like uses may be reduced to a minimum of five feet.
7:16:3.9. Single-Family Residential Dwellings in Multi-family Districts. Single-family residential dwellings located in multi-family districts shall have a minimum lot width of 30 feet and a side and rear setback of five feet. Front setbacks are measured from the street right of way and are as follows: 20 feet on a residential street, 30 feet on a collector street, and 50 feet on an arterial street.
7:16:3.10. Setbacks for I-1 and S-1. All buildings shall be set back from all street right-of-way lines not less than 50 feet. No building shall be located closer than 25 feet to a side or rear lot line except where the property is adjacent to a railroad right-of-way and written approval from the railroad authorities has been obtained to utilize the railroad spur for loading and unloading.
7:16:4. ALTERNATIVE DENSITY, LOT SIZE, AND SETBACK REQUIREMENTS FOR SINGLE-FAMILY RESIDENTIAL DISTRICTS.
(1)
Dwelling, Single-Family Attached and Dwelling, Two-Family (Duplex). Single-family attached residential dwellings and two-family (duplex) dwellings are permitted subject to the district requirements and the following conditions:
A.
In R-15, and R-12, the units must be within a subdivision submitted and reviewed under Section 7:2, Open Space Residential Development.
B.
In R-10, R-7.5, and R-6, the units are subject to the following:
a.
Front setback shall be 20 feet unless located in a transportation improvement program (TIP) project area. In these cases, additional setbacks shall apply.
b.
For townhomes, side setbacks for interior units may be reduced to zero feet.
c.
Minimum lot width per unit may be reduced to 20 feet in a townhouse development for interior units. End units must maintain the required 30-foot lot width. For corner lots, refer to Section 7:16:3.4.
d.
No more than six units shall be joined together with the same or staggered minimum required front setback. This requirement is not eligible for a variance.
e.
If a development is proposed with staggered front setback lines, the unit that is established closest to the front property line must maintain a 20-foot setback. No building will be allowed to encroach beyond the established minimum required front setback nor shall any building encroach more than 25 percent in depth of the adjoining building.
(Ord. No. ZTEXT-2015-01, § 2, 1-5-16; Ord. No. 2023-7, § 1(b)—(d), 7-13-23; Ord. No. TX 2024-01, § 1, 11-14-24)
- GENERAL PROVISIONS
The regulations set forth in this Ordinance affect all land, every building, and every use of land and/or buildings and shall apply as follows.
7:1.1. New Uses or Construction. After the effective date of this Ordinance, any new construction or uses of land shall conform to the use and dimensional requirements for the district in which it is to be located.
7:1.2. Open Space Requirements. After the effective date of this Ordinance, no part of a yard, court, or other open space, or off-street parking or loading space required for the purpose of complying with the provisions of this Ordinance shall be included as part of a yard, open space, or parking and loading space required for any other building.
7:1.3. Reduction of Lot and Yard Area Prohibited. No yard or lot existing at the time of passage of this Ordinance shall be reduced in size or area below minimum requirements set forth herein. Yards or lots created after the effective date of this Ordinance shall meet at least the minimum requirements established herein.
7:1.4. Conforming Uses. After the effective date of this Ordinance, structures or the uses of land or structures which then conform to the regulations for the district in which such structures or uses are located may be continued; provided that any structural alteration or change in use shall conform with the regulations herein specified.
7:1.5. Nonconforming Uses. After the effective date of this Ordinance, structures or uses of land or structures which would be prohibited under the regulations for the district in which such structures or uses are located shall be considered as nonconforming. Nonconforming structures or uses may be continued; provided they conform to the provisions contained in Article 7, Section 2.
7:1.6. Nonconforming Lots. In any district in which single-family dwellings are permitted, if a lot of record at the effective date of adoption of this Ordinance does not contain sufficient land area to permit a building to conform to the dimensional requirements of the Ordinance, such lot may be used as a building site for a single-family residence provided there is a conformance to the minimum front and side yard requirements set forth in this Ordinance for the district in which the residence is located; and further, that any permitted use serviced by a private septic tank system shall meet minimum County Health Department regulations.
7:2.1. Extension of Nonconforming Uses; Nonconforming Structures. Nonconforming uses of land or structures existing at the time of adoption of this Ordinance shall not hereafter be enlarged or extended in any way, with the exception of nonconforming single-family residential structures. Nonconforming single-family residential structures may be enlarged or extended in any zoning district provided that the new additions conform to the setback requirements provided in the zoning district in which such structures or uses are located.
7:2.2. Change of Nonconforming Use. Any nonconforming use may be changed to any conforming use, or with the approval of the Zoning Board of Adjustment, to any use more in character with the uses permitted in the district. In permitting such change, the Zoning Board of Adjustment may require appropriate conditions and safeguards in accordance with the provisions of this Ordinance.
7:2.3. Cessation of Nonconforming Uses. When a nonconforming use of land ceases for a continuous period of six consecutive months, subsequent use of the land shall conform to the regulations for the district in which the land is located.
7:2.4. Cessation of Nonconforming Uses of Structures. When a nonconforming use of a structure is discontinued or abandoned for six consecutive months, the use shall not be resumed; and the subsequent use shall conform to the regulations for the district in which the structure is located.
7:2.5. Repair and Alteration of Nonconforming Uses. Normal maintenance and repair of a building occupied by a nonconforming use is permitted provided no other provisions of this Ordinance are violated.
7:2.6. Damage or Destruction of Nonconforming Uses. Any structure containing a nonconforming use which has been damaged by fire or other causes may be reconstructed and used as before if reconstruction is substantially begun within 12 months of such damage. However, reconstructed structures shall not exceed the square footage contained in the structure at the time the damage occurred. Furthermore, all reconstructed structures which alter, improve on, or are built on a different site from the original construction shall meet all applicable requirements for the district in which the structure is to be located unless such requirements are waived or modified by the Board of Zoning Adjustments pursuant to its powers enumerated in Article 11.
7:2.7. Temporary Nonconforming Uses of Land. Temporary nonconforming uses of land for carnivals and similar uses may be permitted according to the provisions of Article 10, Section 3.
There shall be not more than one principal residential building and its accessory buildings on one lot, except as provided in Article 5.
Every building hereafter erected or moved shall be located on a lot adjacent to and have access to a public street, highway, road, or other public way.
No commercial signs or other structures shall project beyond any right-of-way line of any street. No shrubbery shall project into any public street right-of-way.
7:6-1. Vehicles without Current License Plates and/or Inoperable Motor Vehicles. Automobiles, trucks, or trailers of any kind or type without current license plates and or inoperable motor vehicles shall not be parked or stored in any zoned areas other than in completely enclosed buildings. No vehicle shall at any time be in a state of major disassembly, disrepair, or in the process of being stripped or dismantled. Painting of vehicles is prohibited unless conducted inside an approved spray booth.
7:6.2. Travel or Camping Trailers. Not more than one travel or camping trailer, per family living on the premises, shall be permitted on a lot in any Residential District. The trailer shall not be occupied temporarily or permanently while it is parked or stored, except in an authorized mobile home park.
7:6.3. Commercial Vehicles. Not more than one commercial vehicle, which does not exceed 1½ tons rated capacity, per family living on the premises, shall be permitted in a Residential District; no commercial vehicles used for hauling explosives, gasoline, or liquefied petroleum products shall be permitted.
(Ord. No. 2007-18, § 1, 5-10-07)
The following provisions qualify and supplement the specific height regulations set forth in Table 7.3.
7:7.1. Public and Semipublic Buildings. Hospitals, schools, churches, and other public and semipublic buildings may exceed the height limitations of the district if the minimum depth of rear yards and the minimum width of side yards required in the district regulations are increased one foot for each two feet by which the height of such public or semipublic building exceeds the prescribed height limit.
7:7.2. Other Structures. Chimneys elevators, poles, spires, tanks, towers, and other projections not used for human occupancy may exceed the district height limit.
(Ord. No. 2023-7, § 1(e), 7-13-23)
On any corner lot on which a front and side yard are required, nothing shall be erected, placed, planted, or allowed to grow which obstructs sight lines between a height of 2½ feet above the crown of the adjacent roadway and ten feet in a triangular area formed by measuring from the point of intersection of the front and exterior side lot lines a distance of 25 feet along the front and side lot lines and connecting the points so established to form a triangle on the area of the lot adjacent to the street intersection.
There shall be provided at the time of the erection of any building, or at the time any principal building is enlarged or increased in capacity by adding dwelling units, guest rooms, seats, or floor area; or before conversion from one type of use of occupancy to another, permanent off-street parking space in the amount specified by this section. Such parking space may be provided in a parking garage or properly graded and improved open space. All portions of the required space which are paved shall be marked in accordance with the standards contained herein. Lines shall be marked with an approved paint.
7:9.1. Certification of Minimum Parking Requirements. Each application for a Building Permit or Certificate of Occupancy submitted to the Zoning Administrator, as provided for in Article 10, shall include a plan showing the required space reserved for off-street parking and loading space and the means of ingress and egress to such space. This information shall be the responsibility of the owner/developer and shall be sufficient to enable the Zoning Administrator to determine whether or not the requirements of this section are met.
7:9.2. Combination of Required Parking Space. The required parking space for any number of separate uses may be combined in one lot, but the required space assigned to one use may not be assigned to another use, except that one-half of the parking space required for churches, theatres, or other uses whose peak attendance will be at night or on Sundays may be assigned to a use which will be closed at night or on Sundays.
7:9.3. Remote Parking Space. If the off-street parking space required by this Ordinance cannot be reasonably provided on the same lot on which the principal use is located, such space may be provided on any land within 400 feet of the principal use. Such space shall be deemed required space associated with the permitted use and shall not hereafter be reduced or encroached upon in any manner. It is further provided that the Zoning Administrator may require a plat, deed, or other documentation necessary to show that remote parking space is controlled by and available to the applicant prior to the granting of a Zoning Certificate.
7:9.4. Design of Parking Area. All off-street parking except off-street parking for single-family detached dwelling units, single-family attached dwelling units on adjoining individual lots, or two-family dwellings located on a residential service street, shall be designed so that vehicles can turn around within the area and enter the street, road, or highway in such a manner as to completely eliminate the necessity of backing into the street, road, or highway. Off-street parking for single-family detached dwelling units, single-family attached dwelling units on adjoining individual lots, or two-family dwelling units, which requires backing into a residential service street shall be permitted provided that such movement can be made with reasonable safety and without interfering with other traffic. Curbing shall be required along the edge of pavement and landscape islands of the parking area, except for the purpose of bioretention cells and rain gardens, which may be approved by the Zoning Administrator and City Engineer.
7:9.5. Size of Off-Street Parking Space. The size of a parking space for one vehicle shall consist of a rectangular area having dimensions of not less than 9 feet by 20 feet, plus adequate area for ingress and egress. The Zoning Administrator may approve compact car parking spaces up to 10% of a parking area, meeting current ANSI specifications. The spaces must be signed or stenciled appropriately, and should incorporate a deterrent for larger vehicles to use the spaces.
7:9.5.1. Off-Street Parking Space Design Standard.
(See Diagram)
Minimum driveway widths shall be maintained to the point of intersection with the adjoining public or private right-of-way.
At least one fire access lane must be provided and approved by the local fire district.
In 90 degree parking stalls, the depth of the stall may be reduced to 18 feet where a grassed or landscaped median, with a minimum two-foot width per row of parking stalls, has been provided for automobile overhang. Wheel-stops or curbing shall be provided to protect and delineate the median from the parking stalls.
Parking Standards
7:9.6 Parking Requirements. Wherever off-street parking is required in district regulations, a minimum of two spaces per 1,000 square feet of gross floor area and not to exceed a maximum of three spaces per 1,000 square feet of gross floor area shall be provided on the same lot with the principal use, except as provided in section 7:9.3.
PARKING RATIOS - SEE TABLE BELOW
If the parking spaces are constructed of a pervious material the Zoning Administrator may authorize an increase up to 125% above the allowable parking space maximum.
The zoning administrator may authorize a 50% reduction from the minimum number of parking spaces required if it is demonstrated that fewer spaces are needed. The zoning administrator may waive the minimum requirement in the Central Business District for new developments or re-developments provided the parking ratios (see below table) include existing parking. The resulting on-street parking must consistent with the Central Business District guidelines (Section 5:5.4).
7:9.7. Lighting. All parking lot and merchandise display area lighting fixtures, other than floodlights permitted under 7:9.8 herein, shall be cutoff fixtures and shall be mounted at a height not greater than 32 feet above finished grade. Lighting levels in a parking lot shall not exceed 20 foot-candles, and merchandise display area lighting shall not exceed 30 foot-candles, initial level.
7:9.8. Flood Lighting. All flood lights shall be installed with the fixture aimed downward at least 45 degrees below horizontal. Flood lights shall be orientated or shielded so that the source of the light is not visible from the road right-of-way or from any residential use.
7:9.9. Alternative parking surfaces. Up to 125 percent of the required parking areas for office and commercial buildings may be constructed using grass over supporting plastic or concrete grids, or any other pervious surface as approved by the City of Fountain Inn to help reduce the amount of impervious surface on the site. The alternative parking surface should be installed according to the manufacturer's installation instructions.
7:9.10. Landscaping of Parking Area.
Intent: This section is established to reduce the adverse visual, environmental, and aesthetic effects of parking lots, drives, and loading areas by the use of trees and other plant materials. Landscaping will enhance the appearance of the development, provide shade to reduce heat and glare from paved surfaces, reduce storm water runoff, filter pollutants and reduce the formation of ozone and evaporation of nitrous oxides into the air, and reduce the glare of headlights and noise on surrounding properties.
7:9.11. Plan Submittal Requirements.
Landscaping plan required contents: Prior to the issuance of an occupancy permit for any development, a specific landscape plan, at a scale of not less than one inch equals 50 feet, shall be submitted to the building and zoning division for approval and shall contain existing and proposed landscaping, including:
•
The location, botanical name and common name, size in diameter one-half foot above grade, and height of new trees to be planted, which must comply with this code.
•
The location, botanical name and common name, size in diameter 4½ feet above grade, and estimated height of existing trees, which are to be maintained or preserved for credit as per the requirements of this code.
•
The location and dimensions of parking lot buffer areas and other planting areas.
•
The size, botanical name and common name and spacing of plant materials.
•
The location and design of any fence, wall, or earthen berm indicating size, dimensions and materials.
•
The location and description of any barriers required to be erected to protect any existing vegetation from damage as required in section 7:9.15.
•
Provisions for watering and other long-term maintenance to assure serviceability, soil stabilization, and plant protection.
7:9.12. Roadside Buffers. All new off-street parking lots, regardless of size, located adjacent to existing public right(s)-of-way shall establish roadside buffers. Roadside buffers shall be located outside of the rights-of-way of existing roads and shall be located outside the future rights-of-way of all roads in the GPATS Long Range Plan.
A.
The minimum roadside buffer width shall have an average planting width of eight feet, with the minimum width for any buffer yard being (5) feet. Buffers shall contain the following plant materials:
An average of one medium or large shade tree for every 40 feet of linear road frontage. Trees shall be spaced so that there is a minimum of one tree for every 200 linear feet of road frontage. Shrubs spaced to provide a continuous evergreen screen within three years of installation.
B.
Within the buffer yard fences, walls, earthen berms, or any combination thereof may be used to meet the requirements of this section, so long as they are a minimum of 30 inches in height and provide a continuous opaque visual screen. Berms shall have a side slope no greater than 2:1.
C.
Where existing overhead power utility lines preclude sufficient space for a shade tree to grow, then two small trees shall be substituted for each required shade tree.
7:9.13. Interior Plantings. In addition to all other landscaping requirements, all new off-street parking lots with 20 or more spaces shall provide and maintain landscaped planting areas within the interior of, and adjacent to, the parking lot:
A.
Interior planting islands for medium shade trees shall have a minimum planting area of eight feet wide by 18 feet long.
B.
Interior planting islands for large shade trees shall have a minimum planting area of 16 feet wide by 18 feet long.
C.
In addition to the required trees and shrubs interior-planting areas shall be grassed or covered with mulch.
D.
All planting areas shall be protected from vehicular intrusion by the installation of curbing, and/or wheel stops.
E.
Perimeter and interior plantings must be planted with a minimum of one medium shade tree and two shrubs or small trees for every 2,000 square feet of vehicular use area, which includes parking spaces, aisles, driveways, and loading areas; or
F.
Perimeter and interior plantings must be planted with one large shade tree and two shrubs, medium shade trees, or small trees for every 4,000 square feet of vehicular use area, which includes parking spaces, aisles, driveways, and loading areas.
G.
Interior planting areas shall be designed within or adjacent to the parking area(s) as:
•
Islands, located at the end of parking bays;
•
Islands, located between parallel rows of cars;
•
Driveway medians a minimum of eight feet in width;
•
Intermediate islands; or
•
A combination of the above
H.
Trees and shrubs must be planted within 20 feet of the vehicular use area to satisfy the interior planting requirements.
I.
The design size and shape of the interior planting areas shall be at the discretion of the owner; however, no parking space shall be:
•
Located farther than 60 feet from the trunk of a shade tree;
•
Separated from a shade tree by a building or other structure.
J.
Parking structures are excluded from interior landscape areas.
7:9.14. Planting Material Specifications.
A.
Large shade trees shall have a minimum planting size of two inches caliper.
B.
Small trees and multi-stem trees shall have a minimum planting height of six feet tall.
C.
Evergreen shrubs shall have a minimum installed height of 12 inches and a minimum height of 30 inches within three years of installation. All shrubs inside the sight triangle at points of ingress and egress shall not exceed 36 inches in height.

Figure 1. Interior Landscaping
7:9.15. Existing Trees. It is encouraged to use existing trees to meet the requirements of this section. If existing trees are preserved to meet the roadside buffer or interior planting requirements, a reduction in the new planting requirements will be given. Existing trees will be credited towards meeting the requirements of this section as follows:
One tree (2—6 inches diameter at breast height) = 1 planted tree
One tree (6—10 inches diameter at breast height) = 2 planted trees
One tree (10—15 inches diameter at breast height) = 3 planted trees
One tree (15+ inches diameter at breast height) = 4 planted trees
Protection of Existing Trees Any trees preserved on a development tract to receive credit shall meet the following protection standards. A root protection zone shall be established around all trees to be preserved. The root protection zone shall be clearly shown on all grading and site plans.
A.
Root Protection Zone - The land area around the base of a tree in which disturbances are prohibited in order to protect the roots of the tree and aid the tree's survival. The root protection zone shall be equal to one foot radius for every inch of tree diameter measured at a point 4½ feet above ground. Root protection zone measurements shall be rounded off to the nearest foot.
B.
Protective Barrier - A protective barrier shall be installed at the start of grading, and be located at the outer edge of the root protection zone. Protective barriers shall be posted as a "Tree Save Area". This procedure shall be incorporated as a note on the grading and erosion control plans. Protective barriers shall be constructed of a material resistant to degradation by sun, wind, and moisture and shall remain in place until all construction is complete.
C.
No storage of materials, dumping of waste materials, trenching, grading, fill, or parking of equipment shall be allowed within the root protection zone and no trespassing shall be allowed within the boundary of the root protection zone. Utility easements are not permitted, unless the Zoning Administrator deems that there is no alternative method.
7:9.16. Landscaping for Preexisting Parking Lots.
A.
Purpose and intent of section. The city recognizes the need to include in this article minimum landscaping requirements for preexisting parking lots. The city also recognizes that failing to bring nonconforming parking lots into conformance with this article not only jeopardizes the physical revitalization of the city, but also fails to equally provide the environmental benefits associated with living trees to all regions of the city. The practical effect of this section is to bring these preexisting areas into conformity with the regulations for the installation of trees and other plant materials in new developments.
B.
Preferred design standards. Although not required by this section, the preferred design of buffers and/or other planting areas for preexisting parking lot areas would be to install the required minimum number of trees and other plant materials, spaced evenly, in a buffer between the vehicular surface area and the public right-of-way. The plant materials used in the buffer yards should be designed to assure visibility and safety of pedestrians on the public street, as well as those within the parking lot.
C.
Application of section. Any preexisting parking lot area to which an expansion or addition is made shall be landscaped to meet the buffer yard and interior planting requirements of this section.
D.
Landscape requirements.
(1)
In order to achieve the desired results of this section, the minimum number of off-street parking spaces previously required by the City Code may be reduced by a maximum of 25 percent. No reduction in the required number of parking spaces shall occur without the prior approval of the zoning administrator, who shall first determine if the proposed reductions would cause or increase on-street parking congestion.
(2)
Expansions or additions to existing parking lots shall be subject to:
a.
Preexisting parking lots that occupy a corner lot, to which any expansions and/or additions are made and preexisting parking lots, to which expansions or additions of more than 25 percent are made, shall meet 100 percent of the buffer yard landscaping requirements for new development.
b.
All other preexisting parking lots, to which expansions or additions of 25 percent or less are made, shall be subject to 50 percent of the buffer yard landscaping requirements for new development.
(3)
Landscaped planting areas.
a.
All preexisting parking lots shall be required to provide and maintain landscaped planting areas within the interior of, and/or adjacent to, all portions of the parking lot. Each landscaped planting area shall contain a minimum area adequate to accommodate the most growth of the plant material used.
b.
Existing planting areas containing a minimum of 144 square feet and existing trees with a minimum caliper of one inch measured at a 4 ½ feet above grade may be used to meet the requirements provided that, should these existing trees become diseased, unhealthy, or die, they shall be replaced within one year with approved shade trees.
c.
All areas used for required buffer yards shall be located on the property. In unusual or extraordinary circumstances, as determined by the zoning administrator, public property or public-right-of-way may be used to meet the requirements of this section, provided the property owner obtains permission from the city public works department and/or SCDOT. Maintenance remains the responsibility of the private property owner.
(4)
Interior planting areas shall be designed within or adjacent to the parking area as:
a.
Islands located at the end of parking bays;
b.
Islands located between parallel rows of cars, used to visually separate parking areas;
c.
Part of a continuous street yard planting;
d.
Driveway medians, which shall have a minimum width of four feet for medians with shrubs, six feet for medians with shrubs and intermediate trees and nine feet for medians with major deciduous or evergreen trees;
e.
Foundation plantings; or
f.
A combination of the items set forth in subsection (4) a-e.
g.
Provide drainage for planting areas, "Shade" trees can be used if adequate rooting medium Cornell Structural Soil, 'CU-Soil' is used.
(5)
Each interior planting area shall contain locally adapted trees and shrubs at the following rates:
a.
Trees shall be required at the minimum rate of one (1) medium shade tree for every 2,000 square feet, or portion thereof, of total preexisting parking lot or;
b.
One (1) large shade tree for every 4,000 square feet, or portion thereof, of total preexisting parking lot.
c.
Shrubs shall be required at the minimum rate of one shrub per 1,000 square feet, or a portion thereof, of total preexisting parking lot.
(6)
All planting areas shall be protected from vehicle damage by the installation of curbing, wheel stops, extra width in the buffer area or other method approved by the zoning administrator.
(7)
Shrubs in buffer yards shall be no less than 18 inches in height when installed and shall attain a minimum height of 30 inches as measured from either the adjacent right-of-way or the paved parking lot, whichever is higher in elevation. No more than 25 percent of the required shrubs may be deciduous.
(8)
Earthen berms may also be incorporated into the design of any required planting area. Any berm installed shall have a minimum side slope of no greater than two to one. Berms shall be planted with locally adapted species of shrubs, ground covers and/or other plant materials. However, shrubs planted on berms may have a lesser height, provided that the combined height of the berm and the plantings after three years is at least 30 inches high.
7:9.17. Landscaping for Loading, Outdoor Storage and Utility Service.
A.
In general, all loading, outdoor storage, and utility service areas established after the adoption of the Ordinance from which this section is derived and not screened by an intervening building or other screening shall be screened from view from public street rights-of-way(s) for their entire length, except for necessary access. The plant materials used for the screening of these facilities should be designed to assure visibility and safety of pedestrians on the public street, as well as those within the parking lot. The required screening in this section is in addition to any other screening required by this article.
B.
Loading areas, including garbage dumpsters and material storage areas. Screening for loading areas may be accomplished by:
(1)
A solid (opaque) fence or wall which is at least six feet high and is made of the same or compatible material as the material of the principal building. Additional plant materials shall be provided so that no more than two-thirds of the surface area of the fence or wall is visible from the street within three years of erection of the structure; and
(2)
Evergreen plant material, which can be expected to reach a minimum height of six feet within three years of planting. Any plant materials used to fulfill these requirements shall be a minimum of three feet in height when planted, and be spaced at intervals that guarantee complete visual screening within five years.
C.
Outdoor storage area. Screening for outdoor storage may be accomplished with the use of plant material, solid (opaque) fences, walls or earthen berms, or any combination thereof. Screening shall be in accordance with SCDOT sight-triangle requirements and/or those requirements in other sections of this chapter, to ensure public safety at all drive entrances and exits.
(1)
Screening shall be exclusive of driveways and sight triangles for safe automobile ingress and egress.
(2)
When fences and walls are used, they shall be of the same or compatible material as the material of the principal building. Additional planting materials shall be provided so that no more than two-thirds of the surface area of the fence or wall is visible from the street within three years of erection of the structure. Twenty-five percent of this plant material may be deciduous.
(3)
Any berms installed shall have a side slope of no greater than two to one, and shall be planted and covered with live vegetation.
(4)
All shrubs installed to satisfy the requirements of this section shall be locally adapted species expected to reach a minimum height of six feet within three years of planting. All shrubs shall be a minimum height of six feet within three years of planting. All shrubs shall be a minimum of 18 inches when planted. Vegetation planted on berms may have a reduced minimum mature height, provided that the combined height of the berm and the plantings shall be a minimum of six feet in height after three years. Twenty-five percent of all shrubs may be deciduous.
(5)
Screening for utility Service Areas May Be Accomplished By Locally Adapted Evergreen Plant Materials, Fences, Walls, Or A Combination Thereof.
(6)
Plant materials shall be a minimum of 18 inches in height when planted and are expected to reach a minimum height of six feet within five years.
7:9.18. Exceptions.
A.
Any lot used for the express purpose of automobile sales and storage is exempt from the landscaping requirements for interior plantings.
B.
Parking Structures (multi-level).
7:9.19. Owner Responsibilities and Maintenance. The owner, his successors, or assigns, are responsible for maintaining all required plant material in good health. Any planted trees which die or become unhealthy and are used to meet the provisions of this section must be replaced within one year with vegetation which conforms to the initial planting standards of section 7:9.10.
7:9.20. Prohibited Plant Material. Bradford pears, Pryrus calleryana, are prohibited as a plant medium for landscaping as it applies to this Ordinance. These trees have limbs that are easily damaged in the presence of high winds, heavy rains, and/or snowstorms. For this reason Bradford Pear trees are subject to premature replacement, and they are not a suitable tree for long term landscaping or buffering.
7:9.21. Suggested Plant Material List. This list is not intended to be all-inclusive, but does include common trees and shrubs suitable for use in this region. Professional expertise should be sought to determine the appropriate plant materials for any particular site when considering individual site, soil, moisture, and microclimate conditions.
Large Shade Trees
American Sycamore Platanus occidentalis
Bald cypress, Taxodium distichum
Chinese Elm, Ulmus parvifolia
Cryptomeria, Cryptomeria japonica
Dawn Redwood, Metasequoia
Deodar Cedar, Cedrus deodara
Japanese Pagoda, Sophora japonica
Japanese Zelkova, Zelkova serrata
Laurel Oak, Quercus laurifolia
Littleleaf Linden, Tillia cordata
London planetree Platanus x acerifolia
Schumard Oak, Quercus schumardi
Southern Magnolia, Magnolia grandiflora
Sweet Gum Liquidambar styraciflua
Water Oak, Quercus nigra
White Ash, Fraxinus americana
White Oak, Quercus alba
Willow Oak, Quercu phellos
Medium Shade Trees
American Holly Ilex opaca
American Hophornbeam Ostrya virginiana
Amur Maple Acer ginnala
Chinese Elm Ulmus parvifolia
Chinese Pistache Pistacia chinensis
Foster's Holly Ilex x attenuata
Golden Raintree, Koelreuteria paniculata
Hedge Maple Acer campestre
Japanese Crape Myrtle, (larger varieties) Lagerstroemia fauriei
Japanese Lighstrum Ligustrum japonicum
Lacebark Elm Ulmus parvifolia
Littleleaf Linden, Tillia cordata
Red Maple Acer rubrum
River Birch Betula nigra
Savannah Holly Ilex x attenuate
Trident Maple Acer buergerianum
Small Trees
American Holly, Ilex opaca
Amur Maple, Acer ginnala
Carolina Silverbell, Halesia Carolina
Chastetree Vitex agnus-castus
Crabapple Malus baccata
Crape-Myrtle, Lagerstroemia indica
Eastern Redbud, Cercis canadensis
Flowering Dogwood, Cornus florida
Golden Raintree, Koelreuteria paniculata
Japanese Maple, Acer palmatum
Kousa Dogwood, Cornus kousa
Kwanzan Cherry, Prunus serrucata
Pissard Plum, Prunus cerasifera
Saucer Magnolia, Magnolia soulangiana
Serviceberry, Amelanchier arborea
Yoshino Cherry, Prunus x yedoensis
Evergreen Shrubs
Azalea, Azalea obtusum
Carissa Holly, Ilex cornuta
Curlyleaf Ligustrum, Ligustrum japoninca
Dwarf Boxwood, Boxus sempervirens
Dwarf Buford Holly, Ilex cornuta
Dwarf Nandina, Nandina domestica
Dwarf Yaupon Holly, Ilex vomitoria
Harland Boxwood, Boxus harlandii
Hawthorn, Raphiolepis indica
Inkberry Holly, Ilex glabra
Japanese Holly, Ilex crenata
Otto Laurel, Prunus laurocerasus
Parsons Juniper, Juniperus davurica
Tamarix Juniper, Juniperus sabina
Schipka Laurel, Prunus laurocerasus
7:9.22. Variances. The Board of Zoning Appeals, pursuant to site hardships, may grant a variance. Adequate engineering, landscaping, and arborist plans and specifications are required.
(Ord. of 8-11-05; Ord. No. 2007-25, § 1, 9-13-07)
7:10.1. Requirements for Industrial and Wholesale Buildings. Every industrial and wholesale building hereafter erected shall provide space as indicated herein for loading and unloading of vehicles. The number of off-street loading berths required by this section shall be considered as the absolute minimum, and the developer shall evaluate his own needs to determine if they are greater than the minimum specified by this section. For purposes of this section, an off-street loading berth shall have minimum plan dimensions of 12 feet by 60 feet and 14 feet overhead clearance with adequate means for ingress and egress.
7:10.2. Design of Loading Spaces. Off-street loading spaces shall be designed so that vehicles can maneuver for loading and unloading entirely within the property lines of the premises.
7:10.3. Requirements for Commercial Uses. All retail uses and office buildings with a total floor area of 20,000 square feet shall have one off-street loading berth for each 20,000 square feet.
Game courts, swimming pools, and satellite dish antennas are allowed as accessory uses in residential districts in conjunction with one family, one family mobile home and two-family dwellings, subject to the following provisions:
A.
Game courts, swimming pools, and satellite dish antennas shall be located in the rear yard.
B.
Game courts, swimming pools, and satellite dish antennas shall be set back not less than five feet from any lot line.
C.
Setback requirements for game courts, swimming pools, and satellite dish antennas on corner lots shall be the same as those for accessory buildings.
D.
Game courts shall not occupy more than 65 percent of the rear yard, and swimming pools and satellite dish antennas shall not occupy more than 50 percent of the rear yard.
E.
Lighting for game courts and swimming pools shall have proper shielding from glare.
F.
All satellite dish antennas shall employ (to the extent possible) materials and colors that blend with the surroundings.
7:12.1. Fee. A fee of $150.00 shall be paid to the City Clerk prior to the construction of each new communications tower. If a new antenna is to be constructed, and is to be located upon a pre-existing tower (communications or other), the fee will be waived. The fee will also be waived if proof is provided that $150.00 or more is spent on tower camouflage and concealment, subject to inspection by the Zoning Administrator.
7:12.2. Communication Towers May Be Located in the Following Zoned Areas of Fountain Inn.
A.
Communication towers are permitted as a principal or secondary use in the C-2, S-1, and I-1 Zoning Districts and are subject to the applicable setback requirements of the district in which they are located.
B.
Communication Towers are not permitted in single-family or multifamily residential zoning districts unless they comply with the ancillary use requirements as defined in D, below.
C-1.
Communication towers are permitted as an ancillary or secondary use on nonresidential zoned sites where another use is already established as the principal use of the property, such as a church, shopping center, office building, public utility site, or other similar use; provided the principal use complies with applicable zoning and subdivision regulations. The minimum setbacks shall be in accordance with the district setbacks.
C-2.
Communication towers are permitted as a use permitted by special exception by the Board of Zoning Appeals as an ancillary or secondary use on residentially zoned sites where another use (other than single-family or duplex use) is already established as the principal use of the property, such as a school, church, multifamily residential complex, public utility site, or other similar use; provided the principal use of the property complies with applicable zoning and subdivision regulations. On such residentially zoned sites, the minimum setback of the zoning district in which it is located shall be increased by one foot for each one foot of tower height in excess of 40 feet. The maximum required separation shall be 200 feet.
D.
In the C-1 and OD Zoning Districts, communication towers are permitted as a use permitted by special exception by the Board of Zoning Appeals. On sites zoned C-1 and O-D adjacent to a residential district, the minimum setback of the zoning district I which ii is located is increased by one foot for each one foot of tower height in excess of 40 feet. The maximum required setback is 200 feet. In the PD Zoning District, communication towers are use permitted by special exception by the Fountain Inn Planning Commission.
7:12.3. Application. Each application for a use permitted by special exception for a communication tower shall include the following information in addition to the general information required by this Ordinance.
A.
Site Plan, which shall include the following information:
1.
the location of tower(s), guy anchors (if any);
2.
transmission building and other accessory uses;
3.
parking;
4.
access;
5.
landscaped areas;
6.
fences;
7.
adjacent land uses; and
8.
photos of site and immediate area.
B.
Prior to approving a Site Plan, the Board of Zoning Appeals must make the following findings:
1.
the proposed structure will not endanger the health and safety of residents, employees, or travelers, including, but not limited to, the likelihood of the failure of such structure;
2.
the proposed structure will not impair the use of or prove detrimental to neighboring properties;
3.
the proposed structure is necessary to provide a service that is beneficial to the surrounding community;
4.
the permitted use meets the setback requirements of the underlying zoning district in which it is located;
5.
the proposed tower is located in an area where it does not substantially detract from aesthetics and neighborhood character;
6.
the proposed use is consistent with potential land uses recommended in the General Development Plan and Comprehensive Plan for Fountain Inn; and
7.
within residentially zoned areas, communication towers shall not be located within 1,000 feet of another communication tower unless such towers are located on the same property.
7:12.4. Height. Freestanding communication towers shall have a maximum height of 300 feet. For communication towers on buildings, the maximum height shall be 20 feet above the roofline of buildings 50 feet or less in height, and 40 feet above the roofline of buildings 50 feet in height or greater.
7:12.5. Landscaping. Landscaping shall be required as follows:
1.
Around the base of the communication tower, outside of the security fence, at least one row of evergreen shrubs capable of forming a continuous hedge at least five feet in height shall be provided, with individual plantings spaced not more than five feet apart.
2.
The landscaping requirements may be waived in whole or in part by the Zoning Administrator if it is determined that existing natural vegetation provides adequate screening or if the Zoning Administrator determines that the landscaping requirements are not feasible due to physical constraints or characteristics of the site on which the communication tower is to be located.
3.
All required landscaping shall be installed according to established planting procedures using good quality plant materials.
4.
A Certificate of Occupancy shall not be issued until the required landscaping is completed in accordance with the approved Landscape Plan and verified by an on-site inspection by the Zoning Administrator or the Zoning Administrator's designee, unless such landscaping has been waived in accordance with (B), above. A temporary Certificate of Occupancy may, however, be issued prior to completion of the required landscaping if the owner or developer provides to the city a form of surety satisfactory to the City Attorney and in an amount equal to the remaining plant materials, related materials, and installation costs as agreed upon by the Zoning Administrator or the Zoning Administrator's designee and the owner or developer.
5.
All required landscaping must be installed and approved by the first planting season following issuance of the temporary Certificate of Occupancy or the surety bond will be forfeited to Fountain Inn.
6.
The owners and their agents shall be responsible for providing, protecting, and maintaining all landscaping in healthy and growing condition, replacing unhealthy or dead plant materials within one year or by the next planting season, whichever first occurs. Replacement materials shall conform to the original intent of the Landscape Plan.
7.
Eight-foot high fencing shall be provided and well-maintained around the communication tower and any associated building.
7:12.6. Illumination. Communication towers shall only be illuminated as required by the Federal Communications Commission and/or Federal Aviation Administration.
7:12.7. Signage. A single sign for the purposes of emergency identification shall be permitted. The permitted sign shall not exceed two square feet in area and shall be attached to the fence surrounding the tower.
Under no circumstances shall any signs for purposes of commercial advertisement be permitted.
7:12.8. Access to Site. Each parcel on which a communication tower is located must have access to a public road 20 feet in width.
7:12.9. General Requirements. Communication towers, in addition to the requirements set forth above, must also comply with the following requirements:
1.
A statement shall be submitted from a registered engineer that the NIER (Non-ionizing Electromagnetic Radiation) emitted therefrom does not result in a ground level exposure at any point outside such facility which exceeds the lowest applicable exposure standards by any regulatory agency of the United States Government or the American National Standards Institute. For roof mounted communication towers, the statement regarding the NIER shall address spaces which are capable of being occupied within the structure on which the communication tower is mounted.
2.
Communication towers and their foundations shall meet the requirements of the Standard Building Code for wind and seismic loads. The requirements for new towers include those for loads which would enable the collocation of two additional antennas. Drawings and calculations shall be prepared and sealed by a South Carolina Registered Professional Engineer and shall be submitted with the building permit application.
3.
All communications towers and supporting facilities shall be subject to periodic reinspection(s) by the Codes Department. If any additions, changes, or modifications are proposed to the site or its components, proper plans, specifications, and calculations shall be submitted for permit approval to the Zoning Administrator.
Prototypical drawings indicating various types of antenna(s) to be located on the communication tower may be submitted at the time of the appropriate permit application. Additional antennas may be added to the communication tower without additional permits or inspections so long as electrical wiring is not required.
4.
Unless otherwise required by the F.C.C. or the F.A.A., communication towers shall be light grey in color.
5.
Towers shall be constructed with three times the capacity of intended use in order that secondary users could lease the balance of the tower capacity at a reasonable rate.
6.
A communication tower must be removed within 120 days of the date such tower ceases to be used for communication purposes.
7.
Communication towers shall not be located within the viewshed of any point within a scenic corridor, a historic preservation district, or from any site on the National Historic Register. For the purposes of this Ordinance, the viewshed sight distance is one mile from the outermost boundary of the corridor or historic property.
7:13.1. Intent. This section is established to accomplish three goals:
1.
To provide protection to residents from poorly designed and aesthetically unattractive commercial developments;
2.
To provide the developer with clear standards that their projects must adhere to; and
3.
To create design standards without compromising creativity in design for the developer.
To accomplish these goals, this section places regulations on exterior wall design, materials, and colors; roof materials and colors; entrances; pedestrian accessibility; landscaping requirements; and screening of outdoor storage, disposal, HVAC equipment and loading operations.
7:13.2. Application. This section applies to all commercial structures within the following zoning districts:
O-D, Office District;
C-1, Commercial District;
C-2, Commercial District;
NC, Neighborhood Commercial District;
S-1, Service District (pertaining to any commercial uses that could be permitted in the Commercial Zoning Districts);
POD, Planned Office District; and
FRD, Flexible Review District.
For the NC, Neighborhood Commercial District, design requirements specified during their respective plan review processes may exceed the standards specified in this section.
7:13.3. Design Standards. The following standards are intended to be used as a design aid by developers proposing retail developments and as an evaluation tool by the Fountain Inn Planning Commission during their review processes.
7:13.4-1. Aesthetic Character.
A.
Exterior Walls. Intent: Buildings should have architectural features and patterns that provide visual interest and be consistent with the community's identity, character, and scale. The intent is to encourage a more human scale that residents of Fountain Inn will be able to identify with their community. The resulting scale will ensure a greater likelihood of reuse of structure by subsequent tenants. The elements in the following standard should be integral parts of the building fabric, not superficially applied trim, graphics, or paint.
Standard: Developments with an exterior wall over 100 feet in linear length visible from any private or public right-of-way shall incorporate three different patterned changes at an interval of no more than 30 feet, either horizontally or vertically. Each pattern change must be at least one foot wide. Patterned changes may include the following: color change, texture change, material change, and wall projections or recesses, at least two feet in depth. At least one of the changes must occur horizontally.
B.
Roofs.
Intent: Variations in rooflines should be used to add interest to and reduce the scale of buildings. Roof features should compliment the character of adjoining neighborhoods.
Standard: Rooflines shall be varied with a change in height every 100 linear feet in the building length. Parapets, mansard roofs, gable roofs, hip roofs, or dormers shall be used to conceal flat roofs and roof top equipment from public view. Alternating lengths and designs may be acceptable and can be addressed in the Development Plan.
C.
Materials.
Intent: Exterior building materials comprise a significant part of the visual impact of a building. Therefore, they should be aesthetically pleasing and compatible with materials and colors used in adjoining neighborhoods.
Standard: Predominant exterior building materials shall be of high quality materials. These include, without limitation: brick, wood, sandstone, other native stone, and tinted, textured, or split-faced masonry units.
Predominant exterior building materials shall not include the following: smooth-faced concrete block, tilt-up concrete panels, and pre-fabricated steel panels.
D.
Entryways.
Intent: Entryway design elements and variations should provide orientation and aesthetically pleasing character to the building. The standards identify desirable entryway design features.
Standard: Each building on a site shall have clearly defined, highly visible customer entryways featuring no less than three of the following:
1.
canopies or porticos,
2.
overhangs,
3.
recesses/projections,
4.
arcades,
5.
raised corniced parapets over the door,
6.
peaked roof forms,
7.
arches,
8.
outdoor patios,
9.
display windows,
10.
planters,
11.
wing walls; and
12.
any other architectural detail or feature that accentuates the entryways for the public.
7:13.4-2. Site Design and Relationship to the Surrounding Community.
A.
Entrances for Larger Buildings.
Intent: Larger commercial buildings should feature multiple entrances. Multiple building entrances reduce walking distances from cars, facilitate pedestrian and bicycle access from public sidewalks, and provide convenience where certain entrances offer access to individual stores, or identified departments in a store. Multiple entrances also mitigate the effect of the unbroken walls and neglected areas that often characterize building facades that face bordering land uses.
Standard: Each commercial structure exceeding 25,000 square feet of space shall have two entrances. The two entrances must be located on two different exterior walls that would be most appropriate for access from adjacent parking areas
B.
Windows for Smaller Buildings.
Intent: Smaller retail stores provide an intimate retail experience. It is not uncommon for small retail stores to construct plain buildings with little or no architectural details to provide a sense of human scale. Windows and window displays of such stores should be used to contribute to the visual interest of exterior facades.
Standard: Each commercial structure not exceeding 25,000 square feet shall incorporate windows into their design. Each exterior wall with a customer entrance shall have transparent windows between the height of three feet and eight feet above the walkway grade for no less than 60 percent of the horizontal length of the exterior wall.
Windows shall be recessed and should include visually prominent sills, shutters, or other forms of framing.
C.
Outdoor Storage, Trash Collection, and Loading Areas.
Intent: Loading areas and outdoor storage areas exert visual and noise impacts on surrounding neighborhoods. The disturbances created by commercial uses are commonly associated with these specific activities and locations. As such, they should be carefully considered when developed.
Standards: Areas for outdoor storage, truck parking, trash collection and compaction, loading, or any other similar activities shall:
1.
not be visible from any public or private right-of-way;
2.
not be located within 20 feet of any public or private street, sidewalk, or internal pedestrian way; and
3.
be screened or incorporated with materials and in a manner consistent with the rest of the site, thereby reducing the presence of them.
These standards are subject to the provisions in Article 7, Section 9.14.
D.
Pedestrian Flows.
Intent: Pedestrian accessibility opens auto-oriented developments to the neighborhood, thereby reducing traffic impacts and enabling the development to project a friendlier, more inviting image. This section sets forth standards for public sidewalks and internal pedestrian circulation systems that can provide user-friendly pedestrian access as well as pedestrian safety, shelter, and convenience within the site.
Standards: Sidewalks at least six feet in width shall be provided along all sides of the lot that abut a public or private right-of-way. The Fountain Inn Planning Commission may waive this requirement as part of the development plan if it finds that the sidewalks will likely not be used (subject to the provisions in Section 2, 9.4 "Sidewalks" of the Land Development Regulations).
Customer entrances to all buildings shall be easily and safely accessible to pedestrians from the public sidewalk through internal sidewalks, pedestrian walkways, or painted crosswalks, no less than five feet in width. At a minimum, walkways shall connect focal points of pedestrian activity such as, but not limited to, transit stops, street crossings, building and store entry points, and shall feature adjoining landscaped areas that include trees, shrubs, benches, flower beds, ground covers, or other such as arcades or entryways are part of the exterior wall.
Pedestrian walkways or sidewalks, no less than five feet in width, shall be provided along the full length of the building along any exterior wall featuring a customer entrance, and along any exterior wall abutting public parking areas. Such pedestrian walkways or sidewalks shall be located at least six feet from the exterior wall of the building to provide planting beds for foundation landscaping except where features, such as arcades or entryways, are part of the exterior wall.
Pedestrian walkways shall be distinguished from driving surfaces through the use of durable, low maintenance surface materials, such as pavers, bricks, or scored concrete, to enhance pedestrian safety and comfort as well as the attractiveness of the walkways.
E.
Central Features and Community Spaces.
Intent: Buildings should offer attractive and inviting pedestrian scale features, spaces and amenities. Entrances and parking lots should be configured to be functional and inviting with walkways conveniently tied to logical destinations. Bus stops and drop-off/pick-up points should be considered as integral parts of the configuration. Pedestrian ways should be anchored by special design features such as towers, arcades, porticos, pedestrian light fixtures, bollards, planter walls, and other architectural elements that define circulation ways and outdoor spaces. The features and spaces should enhance the building and the center as integral parts of the community fabric.
Standards: Each structure with greater than 25,000 square feet of commercial space shall contribute to the establishment of enhancement of community and public spaces by providing one amenity per 25,000 square feet of commercial space (up to a maximum of two amenities) from the following list:
1.
patio/seating area,
2.
pedestrian plaza with benches,
3.
transportation center,
4.
window shopping walkways,
5.
outdoor play area,
6.
kiosk area,
7.
water feature,
8.
clock tower,
9.
steeple, or
10.
other deliberately shaped area, focal feature, or amenity that, in the judgment of the Fountain Inn Planning Commission adequately enhances such community and public spaces.
Each amenity shall have direct access to the public sidewalk network and such features shall not be constructed of materials that are inferior to the materials of the building and landscaping.
Although the City of Fountain Inn does not currently maintain a public bus system, all sites with more than 50,000 square feet of commercial space shall provide or be designed to accommodate possible (future) bus service and the growing number of private bus services (i.e., nursing home/assisted living, etc.).
7:13.5. Curb Cuts.
Intent: To have safe and efficient traffic flow accessing roadways. Better access management will help increase sight visibility and reduce traffic accidents.
Standards: Street, driveway, or other access separation along state and federal highways shall be in accordance with the SCDOT, "Access and Roadside Management Standards."
Table 1. Maximum Number of Driveways Per Frontage
*On frontages of 200 feet or less, a pair of one-way driveways may be substituted only if the internal circulation on the site is compatible with the one-way driveways and wrong-way movements on the driveways are rendered impossible or extremely difficult for motorists.
Table 2. Recommended Minimum Spacing for Driveways.
When possible, new development should design vehicular access in a way that encourages the use of shared driveway access to a public roadway. This can be accomplished with double or one-way entrances. Driveways may also provide linkage between lots. Linkage will connect adjoining lots thus providing traffic movement from one development to another.
7:13.6. Lighting. Intent: To increase aesthetic values and safety for the development and application of effective, energy efficient lighting practices that minimize night sky glow, glare, and light pollution.
7:13.6-1. General Standards for Outdoor Lighting. The maximum light level permissible at a residential property line shall not exceed 0.5 foot-candles where non-residential uses abut residential uses, and shall not exceed two foot-candles at the road right-of-way or at a non-residential property line.
7:13.6-2. Flood Lighting. All flood lights shall be installed with the fixture aimed downward at least 45 degrees below horizontal. Flood lights shall be orientated or shielded so that the source of the light is not visible from the road right-of-way or from any residential use.
7:13.6-3. Wall Packs, Ground Mounted Lighting, and Sign Lighting. All wall packs shall be cutoff type fixtures. All external lighting fixtures on a sign or ground mounted luminaries lighting building facades, steeples, trees, billboards, monument signs, flags, and other like items shall not exceed 175 watts. Such lighting fixtures shall be oriented or shielded so that the source of the light is not visible from the road right-of-way or from any residential use. The light output from an internally illuminated sign shall not exceed the limits of Section 7:13.6-1 herein.
7:13.6-4. Parking Lots and Outdoor Merchandise Display Areas. All parking lot and merchandise display area lighting fixtures, other than floodlights permitted under 7:13.6-2 herein, shall be cutoff fixtures and shall be mounted at a height not greater than 32 feet above finished grade. Lighting levels in a parking lot shall not exceed 20 foot-candles, and merchandise display area lighting shall not exceed 30 foot-candles, initial level.
7:13.6-5. Vehicular Canopy Lighting. Lighting fixtures under a vehicular canopy shall be cutoff fixtures or fixtures fully recessed into the canopy. Lighting levels under the canopy shall not exceed 30 foot-candles, and the source of the light shall not be visible from the road right-of-way or from any residential property.
7:13.6-6. Outdoor Playing Field or Performance Area Lighting. All outdoor playing field or performance area lighting fixtures shall be equipped with louvers, shields, or other devices to control glare and to direct lighting at the playing field or performance area. Lighting fixtures shall be mounted at a height not greater than 80 feet above the playing field or performance area. Lighting of the playing field or performance area shall be extinguished no later than one hour after the event.
7:13.6-7. Permits. A Lighting Plan shall be included with all building permit applications for new construction. Such plan shall include specifications of the lighting fixtures to be used, a detailed Site Plan which shows the location of all existing and proposed improvements, the location of the lighting fixtures, and a point-by-point foot-candle array. The Zoning Administrator may waive any or all of the above permit requirements, and accept a certification by a qualified design professional that the Lighting Plan complies with all of the requirements contained herein. These same plan requirements shall apply when new lighting fixtures are being erected on an existing developed property.
7:13.7. Administration.
Intent: To insure compliance with this Ordinance, plans must follow the appropriate criteria of the Ordinance and must be submitted in such a manner as to provide a sufficient amount of time for review.
Standards: The developer or property owner must submit a Development Plan to The Zoning Administrator. The Development Plan shall include the following:
1.
A boundary survey with vicinity map, title block, scale, and north arrow, identification of the total number of acres of overall site, location and size of each structure; and
2.
As many written explanations, diagrams, and/or examples as necessary to demonstrate compliance with all sections of this Ordinance.
The Fountain Inn Planning Commission shall review and take action on the submitted Development Plan within 45 days after receipt of the plan by Fountain Inn Public Works Department.
This review and action shall take place during the Fountain Inn Planning Commission's regular meeting. At that time, the Fountain Inn Planning Commission may consider input from the Zoning Administrator and Greenville County Planning Commission staff. When reviewing a Development Plan, the Fountain Inn Planning Commission may waive any part of Section 7:13, Commercial Design Standards, if they find that compliance with the section is impractical or impossible.
Upon approval from the Fountain Inn Planning Commission, the developer or property owner must not deviate from the plans. If circumstances prevent the compliance with the approved plan, the developer may submit a revised Development Plan to the Fountain Inn Planning Commission for reevaluation.
If the submitted Development Plan is not approved, the applicant may submit a new Development Plan to be reviewed during the next regular meeting of the Fountain Inn Planning Commission. If the new Development Plan is not approved, a review fee of $75.00 will apply for any subsequent submittals.
All commercial establishments subject to this Ordinance must adhere to the Development Plan as approved by the Fountain Inn Planning Commission.
Any failure to adhere to the Development Plan as approved by the Fountain Inn Planning Commission or violation of this Ordinance shall be a misdemeanor. The Zoning Administrator has a duty to enforce compliance with this Ordinance.
The City of Fountain Inn may apply to the Court of Common Pleas for an injunction directing a developer or property owner to cease any violation of this Ordinance.
All construction of improvements shown or described in the Development Plan shall comply with all applicable codes and Ordinances of the City of Fountain Inn.
Any interested party shall have the right to appeal any decision of the Fountain Inn Planning Commission to the Court of Common Pleas by filing a Notice of Appeal with the Clerk of Court for Greenville County within 15 days of the receipt of the written decision of the Fountain Inn Planning Commission.
If the determination by the Court of Common Pleas is that the decision is supported by substantial evidence and is in accord with applicable law, then the appeal shall be dismissed. If the Court of Common Pleas determines that the decision is not supported by substantial evidence or is not in accord with applicable law, the decision shall be reversed and relief shall be granted as may be appropriate.
Any written decisions of the Fountain Inn Planning Commission shall be considered a final determination unless the written decision is appealed pursuant to this Ordinance.
(Ord. of 9-14-06; Ord. No. 2007-25, § 2, 9-13-07; Ord. No. TX 2016-001, § 2, 8-11-16)
Editor's note— Subsection 7:13.2 has been amended at the discretion of the editor to reflect changes instituted by an Ordinance of September 14, 2006.
Pursuant to S.C. Code. The proposed site must not be granted if it is to be within (1) mile of the Central Business District. This distance must be computed by following the shortest route of ordinary pedestrian or vehicular travel along the public thoroughfare from the nearest point of the Central Business District.
7:14.1. Other Requirements
(A)
The Fireworks Stand Operator must allow and cooperate with on-site inspections as considered necessary by the City and must address by corrective action the noncompliance items as identified by the City. Firework Sales are permitted December 18 until midnight January 1 and from June 27 through midnight July 4. However, portable stands may be erected six business days prior to the start of the designated periods but must be removed within six business days after the last day of the designated periods.
(B)
The City may revoke, suspend, or refuse to issue or renew a license pursuant to this chapter and invoke a monetary penalty upon evidence as determined by the city that the licensee of the facility under this chapter has:
(1)
Obtained a Firework Stand license through fraud or deceit; or
(2)
Has violated any applicable law or regulation.
(Ord. of 11-13-06)
7:15.1. Findings. As an incident to the adoption of this Ordinance, the Fountain Inn City Council makes the following findings:
(1)
The South Carolina General Assembly has enacted the "Vested Rights Act" which is codified as S.C. Code, § 6-29-1520 et seq., as amended, (the "Act").
(2)
The Act requires local governments to enact Ordinances implementing the provisions of the Vested Rights Act on or before July 1, 2005. The Act authorizes local governments to establish a procedure for the vesting of rights in certain development plans, and provides that local governments that do not pass Ordinances implementing a procedure for the establishment of vested rights will be subject to the requirements of S.C. Code, § 6-29-1560 of the Act, under which a landowner has a vested right to proceed in accordance with an approved site specific development plan upon the terms and conditions and subject to the requirements and limitations of S. C. Code, § 6-29-1560(A), which section substitutes statutory conditions for vesting, reducing local control and flexibility.
(3)
Council finds that the affected Fountain Inn Ordinances should conform to the requirements of the Vested Rights Act; in a manner to facilitate the administration of the City of Fountain Inn zoning and land use codes, Ordinances and regulations.
7:15:2. Definitions. The following words and terms shall have the following meaning as used in this article:
Approved or approval means a final action by the county governing body or an exhaustion of all administrative remedies from decisions of the City of Fountain Inn zoning, planning or land use officials, boards or commissions which results in the authorization of a site specific development plan or a phased development plan.
Building permit means a written license or permit issued by a local building official that authorizes the construction or renovation of a building or structure at a specific location.
Conditionally approved or conditional approval means an interim action taken by the Fountain Inn governing body or the Fountain Inn Planning Commission, or Board of Zoning Appeals that provides authorization for a site specific development plan or a phased-development plan which is subject to further approval.
Landowner means an owner of a legal or equitable interest in real property, including the heirs, devisees, successors, assigns and personal representatives of the owner. "Landowner" may include a person holding a valid option to purchase real property pursuant to a contract with the owner to act as his agent or representative for purposes of submitting a proposed site specific development plan or a phased development plan pursuant to this article.
Local governing body means:
(a)
The governing body of Fountain Inn; or
(b)
A county body authorized by statute or by the governing body of the City of Fountain Inn to make land use decisions.
Person means an individual, corporation, business or land trust, estate, trust, partnership, association, two or more persons having a joint or common interest, or any legal entity as defined by the laws of South Carolina.
Phased development plan means a development plan submitted to the local governing body or body authorized by the local governing body to make land-use decisions that shows the types and density or intensity of uses for a specific property or properties to be developed in phases, but which do not satisfy the requirements for a site specific development plan.
Real property or property means all real property that is subject to the land-use and development Ordinances or regulations enacted, approved or promulgated by the Fountain Inn City Council, and includes the earth, water and air above, below or on the surface, and includes improvements or structures customarily regarded as part of real property.
Site specific development plan means a development plan submitted to the local governing body or a body authorized by the local governing body to make land-use decisions by a landowner describing with reasonable certainty the types and density or intensity of uses for a specific property or properties. The plan may be in the form of, but is not limited to, the following plans or approvals: planned unit development; subdivision plat; preliminary or general development plan; variance, conditional use or special use permit plan; conditional or special use district zoning plan; or other land-use approval designations as are used by the City of Fountain Inn with regard to submitted plans.
Vested right means the right to undertake and complete the development of property under the terms and conditions of a site specific development plan or a phased development plan as provided in this Ordinance, the Vested Rights Act and in the City of Fountain Inn Land Development Ordinances or regulations.
7:15.3. Establishment of a Vested Right. A vested right as defined herein is established for two years upon the approval of a site specific development plan.
The landowner of real property with a vested right may apply before the end of the vesting period but not thereafter to the Fountain Inn Planning Commission for an annual one-year extension of the vested right. The Fountain Inn Planning Commission must approve applications for at least five annual extensions of the vested right if a timely application has been filed with the Planning Commission unless an amendment to land development Ordinances or regulations has been adopted that prohibits such approval. If no timely application is made by the landowner to the Fountain Inn Planning Commission for an annual extension, the vesting period or annual extension applicable to such real property shall expire at the end of the vesting period or the last annual extension granted thereof.
The Fountain Inn Planning Commission may, but is not required, to provide for the establishment of a two-year vested right in a conditionally approved site specific development plan. No two-year vested right is established in a conditionally approved site specific development plan unless such vested right is specifically and expressly approved by the Fountain Inn Planning Commission in writing when a site specific development plan is conditionally approved.
The Fountain Inn Planning Commission may, but shall not be required, to approve the establishment of a vested right in an approved or conditionally approved phased development plan for a period not to exceed five years.
No vested right in a site specific development plan shall attach or be established until plans have been received, all required approvals have been given or granted, and all fees have been paid in accordance with the procedures outlined in this code. No vested right attaches or is established until a final decision has been rendered favorable to the applicant on all administrative appeals.
The Fountain Inn Zoning Board of Appeals is not authorized to grant or approve a vested right and no vested right shall be established, created or accrue as a result of any decision of the Zoning Board of Appeals.
7:15.4. Conditions and limitations on vested right. A vested right established by this article and in accordance with the standards and procedures in Fountain Inn zoning, land development and land-use Ordinances and regulations is subject to the following conditions and limitations.
(1)
The form and content of a site specific development plan submitted by a landowner must conform and comply with all applicable Fountain Inn zoning, planning, stormwater management and sediment control, building, electrical, mechanical, life safety, fire and other land-use codes, Ordinances and regulations;
(2)
No vested right in a site specific development plan shall be established except in conformity with Fountain Inn zoning, planning, stormwater management and sediment control, building, electrical, mechanical, life safety, fire and other land-use codes, Ordinances and regulations;
(3)
If the Fountain Inn Planning Commission approves a vested right for a phased development plan, a site specific development plan shall be required for approval with respect to each phase in accordance with regulations in effect at the time of vesting.
(4)
A vested right established under a conditionally approved site specific development plan or conditionally approved phased development plan may be terminated by the Fountain Inn Planning Commission upon its determination, following notice and a public hearing, that the landowner has failed to meet the terms of the conditional approval;
(5)
A vested right established in accordance with the provisions of this article shall be vested upon approval by the Fountain Inn Planning Commission of the site specific development plan or phased development plan that authorizes the developer or landowner to proceed with investment in grading, installation of utilities, streets and other infrastructure and to undertake other specific expenditures necessary to prepare for application for a building permit. No developer or landowner shall proceed with investment in grading, installation of utilities, streets or other infrastructure, or shall undertake other significant expenditures necessary to prepare for application for a building permit before a site specific development plan or phased development plan authorizing such improvements and expenditures has been approved by the Fountain Inn Planning Commission. No investments in grading, installation of utilities, streets, or other infrastructure, or other significant expenditures shall give rise to or establish a vested right until the Fountain Inn Planning Commission has approved the site specific development plan or phased development plan that authorizes the developer or landowner to proceed with improvements or undertake other significant expenditures on the real property which is proposed for development. Any vested right so granted is subject to all land development regulation requirements, including, but not limited to, meeting all financial security requirements prior to acceptance of final plats.
A site specific development plan for which a variance, regulation or special exception is necessary, does not qualify and may not claim or receive vested right status unless and until the variance, regulation or special exception is obtained. A phased development plan for which a variance, regulation or special exception is necessary does not qualify and may not obtain a vested right until the variance, regulation or special exception is obtained.
A vested right for a site specific development plan expires two years after vesting; provided, however, that the landowner of real property with a vested right may apply to the Fountain Inn Planning Commission before the end of the vesting period for an annual extension of the vested right for a period of one year. If a timely application is made, the Planning Commission must approve applications for no more than five successive annual extensions unless an amendment to land development Ordinances or regulations has been adopted that prohibits approval of such annual extension applications. The Fountain Inn Planning Commission shall designate the vesting point for a phased development plan as the date of approval of the phased development plan. The Fountain Inn Planning Commission may extend the time for a vested site specific development plan to a total of five years upon a determination that there is just cause for the extension and that the public interest is not adversely affected. Upon expiration of the vested right, a building permit may be issued for development only in accordance with applicable land development Ordinances and regulations and may require new plan submissions in accordance with the applicable Ordinances and regulations.
A vested site specific development plan or a vested phased development plan which has been approved by the Fountain Inn Planning Commission may be subsequently amended if the amendments are approved by the Fountain Inn Planning Commission pursuant to the provisions of applicable Fountain Inn Land Development Ordinances and Regulations.
A validly issued building permit does not expire or is not revoked upon expiration or termination of a vested right, except for public safety reasons or as prescribed by the applicable building code.
A vested right to a site specific development plan or phased development plan may be revoked by the Fountain Inn Planning Commission upon its determination, after notice and a public hearing, that there was a material misrepresentation by the landowner or substantial non-compliance with the terms and conditions of the original or amended approval.
A vested site specific development plan or vested phased development plan is subject to later enacted federal, state or local laws or Ordinances adopted to protect public health, safety and welfare, including, but not limited to, building, fire, plumbing, electrical and mechanical codes and non-conforming structure and use regulations which do not provide for the grandfathering of the vested right. The issuance of a building permit vests the specific construction project authorized by the building permit to the building, fire, plumbing, electrical and mechanical codes in force at the time of the issuance of the building permit.
A change in the zoning district designation or land-use or regulations made subsequent to vesting that affects real property does not operate to affect, prevent or delay development of the real property under a vested site specific development plan or vested phased development plan without the consent of the landowner.
If real property having a vested site specific development plan or vested phased development plan is annexed, the governing body of the municipality to which the real property has been annexed must determine, after notice and public hearing in which the landowner is allowed to present evidence, if the vested right is effective after the annexation.
The Fountain Inn City Council, the Fountain Inn Planning Commission and local zoning, planning and codes officials must not require a landowner to waive his vested rights as a condition of approval or conditional approval of a site specific development plan or phased development plan.
7:15.5. Nature of Vested Right. A vested right pursuant to this Ordinance is not a personal right but attaches to and runs with the applicable real property. The landowner and all successors to the landowner who secure a vested right pursuant to this article may rely upon and exercise the vested right for its duration, subject, however, to applicable federal, state and local laws adopted to protect public health, safety and welfare, including, but not limited to, building, fire, plumbing, electrical and mechanical codes and non-conforming structure and use regulations which do not provide for grandfathering of the vested right. Nothing contained herein shall preclude judicial determination that a vested right exists pursuant to other statutory provisions.
7:15.6. Landowner Rights Deemed Vested. The landowner's rights are considered vested in the types of land use and density or intensity of uses defined in the development plan, and the vesting is not affected by later amendments to a zoning Ordinance or land-use or development regulation if the landowner:
(a)
Obtains or is the beneficiary of a significant affirmative government act that remains in effect allowing development of a specific project.
(b)
Relies in good faith on the significant affirmative government act; and
(c)
Incurs significant obligations and expenses in the diligent pursuit of the specific project in reliance on the significant affirmative government act.
7:15.7. Affirmative Government Acts. For purposes of this section, the following are significant affirmative governmental acts allowing development of a specific project:
(a)
The local governing body has accepted exactions or issued conditions that specify a use related to a zoning amendment;
(b)
The local governing body has approved an application for a rezoning for a specific use;
(c)
The local governing body has approved an application for a density or intensity of use;
(d)
The local governing body or zoning board of appeals has granted a special exception or use permit with conditions;
(e)
The local governing body has approved a variance;
(f)
The local governing body or its designated agent has approved a preliminary subdivision plat, site plan or plan of phased development for the landowner's property and the applicant diligently pursued approval of the final plat or plan within a reasonable period of time under the circumstances; or
(g)
The local governing body or its designated agent has approved a final subdivision plat, site plan or plan of phased development for the landowner's property.
(Ord. of 7-13-06)
7:16:1. CONVENTIONAL RESIDENTIAL DEVELOPMENT.
7:16:1.1. Conventional Residential Development. A conventional residential development is one in which all land area within the development is devoted to building lots that comply with the minimum lot size limits of the residential zoning district. Unless otherwise expressly declared and approved at the time of preliminary plat approval, all residential subdivisions shall be considered conventional developments.
7:16:1.2. Permitted Uses. Permitted uses are defined as those uses permitted outright or by special exception in Article 5.
7:16:1.3. Minimum Lot Area. The minimum lot areas per dwelling unit for each zoning district are listed in Table 7.1 unless otherwise required by DHEC.
7:16:1.4. Calculating Minimum Lot Area. When calculating the minimum lot area within all residential districts, the area adjacent to a lot designated as being city owned right-of-way may be included in the computation and determination of the minimum lot area required under this section. In the case of multiple lot frontages, only the single lot frontage with the greatest length shall be used in computing the minimum lot area.
This provision does not diminish the city's rights and privileges to use the right-of-way nor does it confer any additional rights or privileges concerning the city owned right-of-way to any adjacent landowner.
7:16:1.5. Lot Area for Non-residential Uses in Single Family Districts. For nonresidential buildings located in single-family districts, the lot area shall be adequate to provide the yard areas required by this section and the off-street parking and loading areas required in Section 7.9 and 7.10, Off-street Parking and Off-street Loading, provided, however, that the lot area for each nonresidential building shall not be less than 30,000 square feet.
7:16:1.6. Setback/Yard Requirements. Setbacks from existing roads will be consistent with the requirements outlined in the appropriate zoning district and listed in Section 7:3, Table 7.3 and Table 7.4.
7:16:1.7. Riparian Buffers. Riparian buffers shall be provided along all classes of streams in accordance with the Greenville County Soil and Water Conservation Commission Storm Water Management Design Manual.
7:16:2. OPEN SPACE RESIDENTIAL DEVELOPMENT.
7:16:2.1. Intent. An open space residential development is a residential subdivision in which dwellings are situated on the most developable portion of the site in exchange for the preservation of substantial amounts of open space for recreational, environmental, and ecological reasons. The purpose of open space development is to provide a method of land development that permits variation in lot sizes without an increase in the overall density of population or development. This allows the subdivision of land into lots of varying sizes which will provide home buyers a choice of lot sizes according to their needs, while at the same time, preserving open space, tree cover, scenic vistas, natural drainage ways, and outstanding natural topography. Such measures prevent soil erosion and flooding by allowing development to occur according to the nature of the terrain; provide larger open areas with greater utility for rest and recreation; and encourage the development of more attractive and economical site design.
The developer is able to provide a more economical product to the consumer by reducing the overall cost of required sewer, roads, and other infrastructure. Open space development facilitates the economical and efficient provision of public services as well. The resultant subdivision benefits from the open, recreational space and by the placement of houses in a manner more conducive to better social interactions among neighbors.
7:16:2.2. Open Space Development General Provisions.
7:16:2.2-1. Minimum Lot Area. There is no required minimum lot area per dwelling unit unless otherwise required by DHEC.
7:16:2.2-2. Yard Requirements. There is no minimum lot width, except as required by DHEC and/or the International Building Code.
7:16:2.2-3. Open Space Ownership, Dedication, and Management.
A.
Ownership of open space. The owner and developer, or subdivider, shall select land dedicated for open space purposes and type of ownership. Type of ownership may include, but is not necessarily limited to, the following:
1.
Other public jurisdictions or agencies, subject to their acceptance;
2.
Non-profit or quasi-public organizations committed to the protection and conservation of open space, subject to their acceptance;
3.
Homeowner or cooperative associations or organizations; or
4.
Shared, undivided interest by all property owners within the subdivision.
B.
Maintenance of open space. The person(s) or entity identified above, as having the right to ownership or control over open space, shall be responsible for its continuing upkeep and proper maintenance.
7:16:2.2-4. Effective Date. In order to use the open space residential development option, developers must declare their intent to use the open space development provisions at the time that the preliminary plat for the subdivision is submitted.
Any subdivision under consideration by the planning commission after the effective date of the ordinance from which this section is derived is eligible to be considered for open space development, based on the requirements herein. Any subdivision approved prior to the effective date of the ordinance from which this section is derived is required to be reconsidered by the city planning commission in accordance with the city land development regulations.
7:16:2.2-4. Overhead Utility Easements. Land that lies within an easement for an overhead utility shall not be included in the calculation for the open space that is required to meet the open space residential development regulations.
7:16:2.3. Reserved.
7:16:2.4. Reserved.
7:16:2.5. Open Space Residential Development, Requirements.
7:16:2.5-1. Minimum Areas. The minimum tract area for an open space residential development shall be five acres. The minimum area shall consist of contiguous parcels, not divided by an existing public or private road or a recreational or navigable body of water.
7:16:2.5-2. Setbacks. No structure shall be erected within 25 feet from any external lot line of any open space residential development, however, where land uses within an open space residential development are the same as uses permitted in the adjoining properties outside the open space residential development, a lesser setback that is consistent with the zoning on the adjoining properties may be permitted. Front setbacks will be consistent with the requirements outlined in the appropriate zoning district and listed in Section 7:3, Table 7.4.
7:16:2.5-3. Permitted Uses.
Single-Family Detached Dwellings
Single-Family Zero Lot Line Dwellings
Single-Family Attached Dwellings, except in R-15 and R-12 Residential Districts
7:16:2.5-4. Single-Family Attached. Single-family attached dwellings are permitted subject to the following requirements:
A.
A maximum of 20 percent of the total number of dwelling units may be single-family attached (duplex, triplex and quadraplex). Any attached unit must be a townhouse and excludes condominiums.
B.
Attached units must be contained within the subdivision and not part of any exterior lot except in those areas where exterior lots are adjacent to land zoned for commercial, office or multifamily development.
C.
Attached units may be a duplex, triplex, or quadraplex and shall not exceed more than four attached units per structure.
D.
Attached units shall not be located on preexisting platted lots within a subdivision.
7:16:2.5-5. Permitted Density. The overall number of dwellings allowed in an Open Space Development may be found in Table 7.1.
7:16:2.5-6. Required Common Open Space. In an open space development, a minimum percentage of the total acreage must be designated as open space. The required open space in may include both developable and undevelopable land, as defined in Article 4, Definitions. Of that land dedicated for open space in the R-M, R-6, R-7.5, R-10, R-12, and R-15 districts, a minimum of 50 percent of the total open space must be considered developable land, as defined in Article 4, Definitions.
Not more than 50 percent of the required common open space may be used for active recreation, including uses such as playgrounds, golf courses, and multi-use ball fields, pickleball courts, community swimming pools, clubhouses and similar uses. Recreation areas (passive or active) used to meet the common open space requirements may not contain more than 5% impervious surfaces (e.g. paved walking paths, decks, and recreational structures including shelters, concrete pads, etc.).
Land dedicated as common open space shall be of meaningful proportions and dimensions so as to be consistent with the purpose and intent of this section. The common open space shall be contiguous to the extent practicable. At least 50% of the required common open space shall be accessible and have at least 50 feet of frontage on at least one public street within the development. Recreational lakes or ponds used for storm water management may be included in the land designated as common open space. Fenced detention or retention areas used for storm water management shall not be included in the calculation of required common open space.
7:16:2.6. Minimum Lot Area/Permitted Densities for Single-Family Residential. The minimum lot area for conventional zoning, and densities (units/acre) provided for in each open space development option may be found in the following table. All densities are based on the total number of dwelling units divided by the total number of acres (both developed land and undeveloped land).
7:16:3. DETERMINING SETBACK LINES IN ALL DISTRICTS. All setback lines adjacent to a public right-of-way are measured from the edge of the public right-of-way. When the right-of-way is not known, the setback shall be measured from the edge of the pavement or back of the curb, if present, and each required setback shall be increased by a minimum of ten feet. (See Graphics 1, 2, and 3 herein)
For additional minimum setback requirements, refer to the Transportation Corridor Preservation Ordinance #4326 (Appendix C.).
7:16:3.1. Setbacks/Height.
7:16:3.2. Nonresidential Setbacks in Single-Family Districts.
7:16:3.3. Calculating Minimum Front Setback. The minimum depth of the front yard measured from the street right-of-way line shall be 20 feet on a residential service street, 30 feet on a collector street, and 50 feet on an arterial street, except that when a right-of-way has not been established or is not known, the setback shall be measured from the edge of the pavement or back of the curb, if present, and each required setback shall be increased by a minimum of ten feet.
7:16:3.4. Side Setbacks in Single-family Residential Districts. For residences, accessory buildings, and nonresidential uses located on corner lots, the minimum side yard width measured from the street right-of-way line shall be 20 feet on a residential service street, 30 feet on a collector street, and 40 feet on an arterial street.
The rear and one side setback may be reduced to zero feet for zero lot line dwellings located in single-family districts and are subject to the adopted building code.
Graphic 1
Graphic 2
Setbacks are measured from the foundation wall. Overhangs, architectural embellishments, etc. may encroach the setback a maximum of two feet. Cantilevers consisting of roofed over space may not encroach the setback line. Setback is not measured from stoops, porches, and landings provided they do not occupy more than 20 percent of any exterior wall.
Accessory buildings may be located in the rear yard or side yard provided that they are set back not less than five feet from any lot line and occupy not more than 20 percent of the rear yard.
Graphic 3
7:16:3.5. Reduction of Rear Setback. The rear setback may be reduced to zero for the express purpose of locating a boathouse along the shore of a lake or navigable body of water.
7:16:3.6. Additional Setback in Commercial Districts. On corner lots and lots adjacent to any residential district all commercial buildings and structures shall be set back not less than 15 feet from property lines. When a side yard is provided it shall be not less than five feet in width.
Commercial gasoline islands and canopies shall be set back from all street right-of-way lines not less than 15 feet.
7:16:3.7. Height. All buildings may exceed the height limitations of the district if the minimum depth of rear yards and the minimum width of side yards required in the district regulations are increased one-foot for each three feet by which the height of such building exceeds the prescribed height limit.
Chimneys, elevators, poles, spires, tanks, towers, and other projections not used for human occupancy may exceed the district height limit.
7:16:3.8. Reduction in Setback in NC, POD, and OD Districts. No structure shall be erected within 25 feet from any side lot line or 20 feet from any rear lot line of any neighborhood commercial district and/or planned office development district. However, where land uses within the NC, POD, and OD districts are the same as uses permitted on adjoining properties, the side and rear setbacks adjoining those like uses may be reduced to a minimum of five feet.
7:16:3.9. Single-Family Residential Dwellings in Multi-family Districts. Single-family residential dwellings located in multi-family districts shall have a minimum lot width of 30 feet and a side and rear setback of five feet. Front setbacks are measured from the street right of way and are as follows: 20 feet on a residential street, 30 feet on a collector street, and 50 feet on an arterial street.
7:16:3.10. Setbacks for I-1 and S-1. All buildings shall be set back from all street right-of-way lines not less than 50 feet. No building shall be located closer than 25 feet to a side or rear lot line except where the property is adjacent to a railroad right-of-way and written approval from the railroad authorities has been obtained to utilize the railroad spur for loading and unloading.
7:16:4. ALTERNATIVE DENSITY, LOT SIZE, AND SETBACK REQUIREMENTS FOR SINGLE-FAMILY RESIDENTIAL DISTRICTS.
(1)
Dwelling, Single-Family Attached and Dwelling, Two-Family (Duplex). Single-family attached residential dwellings and two-family (duplex) dwellings are permitted subject to the district requirements and the following conditions:
A.
In R-15, and R-12, the units must be within a subdivision submitted and reviewed under Section 7:2, Open Space Residential Development.
B.
In R-10, R-7.5, and R-6, the units are subject to the following:
a.
Front setback shall be 20 feet unless located in a transportation improvement program (TIP) project area. In these cases, additional setbacks shall apply.
b.
For townhomes, side setbacks for interior units may be reduced to zero feet.
c.
Minimum lot width per unit may be reduced to 20 feet in a townhouse development for interior units. End units must maintain the required 30-foot lot width. For corner lots, refer to Section 7:16:3.4.
d.
No more than six units shall be joined together with the same or staggered minimum required front setback. This requirement is not eligible for a variance.
e.
If a development is proposed with staggered front setback lines, the unit that is established closest to the front property line must maintain a 20-foot setback. No building will be allowed to encroach beyond the established minimum required front setback nor shall any building encroach more than 25 percent in depth of the adjoining building.
(Ord. No. ZTEXT-2015-01, § 2, 1-5-16; Ord. No. 2023-7, § 1(b)—(d), 7-13-23; Ord. No. TX 2024-01, § 1, 11-14-24)