Design Guidelines Traditional Neighborhood Design
Detached Single-Family Residential
Live-Work Units
Civic Uses
Commercial Uses
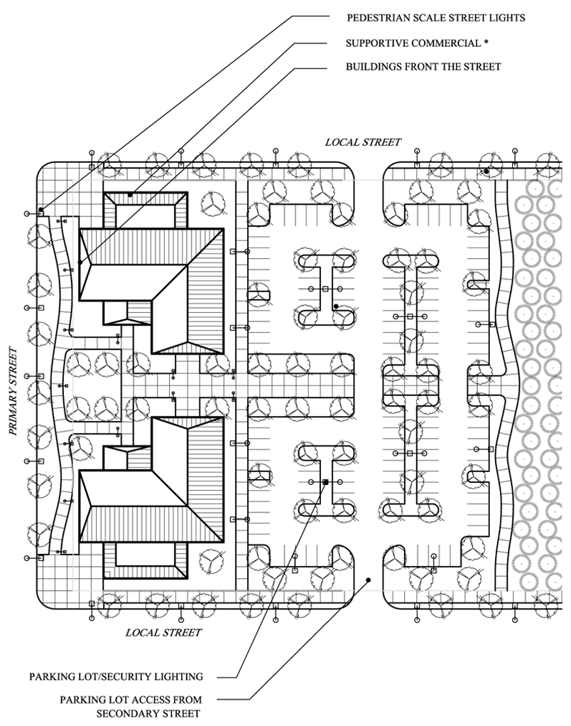
Commercial Corner—Typical Site Plan
Elements In Residential Design
Local Street
Alley
Interconnected Street Grid
Design Guidelines Traditional Neighborhood Design
Detached Single-Family Residential
Live-Work Units
Civic Uses
Commercial Uses
Commercial Corner—Typical Site Plan
Elements In Residential Design
Local Street
Alley
Interconnected Street Grid




