2 LAND USE DISTRICTS
Every parcel, lot, and tract of land within the City of John Day is designated with a land use (zoning) district. The use of land is limited to the uses allowed by the applicable land use district and/or overlay zone. The applicable land use districts and overlay zone(s) are determined based on the Land Use District Map and the provisions of this Chapter, which shall be consistent with the City of John Day Comprehensive Plan, as indicated in Table 5-2.1.010.
Table 5-2.1.010
| Comprehensive Plan Designation | Applicable Land Use District |
| Residential Limited | RL |
| Residential General | RG |
| Residential Limited or Residential General | Residential Commercial (RC) allowed with rezoning |
| Downtown | Downtown |
| General Commercial | General Commercial |
| General Industrial | GI |
| Light Industrial | LI |
| Airport (Ogilvie Field) | Airport Industrial Park (AIP) |
| Overlay/Combining Zones | |
| Airport Approach | Airport Safety & Compatibility Overlay (AASC) |
| Geological Hazard | GH |
| Park Reserve | PR |
| Greenway | GW |
| Floodplain | FP |
| Public Facilities | PF |
Where due to the scale, lack of scale, lack of detail or illegibility of the City zoning map, or due to any other reason, there is uncertainty, contradiction or conflict as to the intended location of a district boundary line, the boundary line shall be determined by the Planning Official in accordance with all of the following criteria:
The Residential Districts are intended to promote the livability, stability and improvement of the City’s neighborhoods. Three districts are provided: 1) The Residential Limited (RL) district is intended to accommodate a wide variety of housing types, including attached and detached housing on small to medium size lots in the neighborhoods close to downtown. The RL district also supports parks, schools, places of worship, and other services at an appropriate neighborhood scale; 2) The Residential General (RG) district is intended to accommodate household living at somewhat lower densities than the RL district because it applies to the hillsides of John Day; and 3) The Residential-Commercial (RC) district is intended to encourage business formation, housing options, and transportation efficiency by combining a variety of housing, like that allowed in the RL district, with public and commercial services at an appropriate neighborhood scale. This chapter provides standards for land use and development in each of the three districts, based on the following principles:
Table 5-2.2.020 identifies the land uses that are allowed in the Residential Districts. The specific land use categories are described and uses are defined in Chapter 5-1.3.
| Table 5-2.2.020 Land Uses Allowed in Residential Districts (RL, RG, RC) | ||||
| Uses | Status of Use in District | |||
| Use Categories (Examples of uses are in Chapter 5-1.3; definitions are in Chapter 5-6.1) | Residential Limited (RL) | Residential General (RG) | Residential Commercial (RC) | [Reserve] |
| Residential Categories | ||||
| Household Living | ||||
| Single Family (not attached) | P | P | P | |
| Accessory Dwelling, per Section 5-2.2.100A. | S | S | S | |
| Duplex (2 dwellings sharing a common wall on one lot) | ||||
| - One duplex on a corner lot | P | P | P | |
| - One duplex on an interior lot | P | P | P | |
| - More than one duplex (4+ units), per Section 5-2.2.100B | S | S | S | |
| Single Family Attached (2 or more common-wall single family dwellings), each on its own lot, per Section 5-2.2.100B | S | S | S | |
| Cottage Cluster (2-4 single family dwellings on one lot, accessed via an alley and oriented to a common green of at least 200 sq ft per unit, and each unit containing not more than 1,000 square feet of floor area) | P | P | P | |
| Manufactured Home, per Section 5-2.2.100E | S | S | S | |
| Manufactured Home Park, per Section 5-2.2.100F. | CU | S | CU | |
| Zero Lot Line Housing (not common wall), per Section 5-2.2.100J | S | S | S | |
| Multifamily (3 or more dwellings on lot), except as provided for Cottage Housing; includes Senior Housing, Assisted Living, and Single Room Occupancy Uses, but not Group Living), per Section 2.2.100G | S | S | S | |
| Group Living | ||||
| Group Care Home, per Section 5-2.2.100C | S | S | S | |
| Group Care Facility, per Section 5-2.2.100C | N | S | S | |
| Commercial Categories | ||||
| Drive-Up/Drive-In/Drive-Through (drive-up windows, kiosks, ATM’s, similar uses/facilities), per Section 5-2.3.100A | N | N | N | |
| Educational Services, not a school (e.g., tutoring or similar services), floor area limited to 2,000 square feet per use | N | N | P | |
| Entertainment, Major Event | N | N | N | |
| Home Occupation, per the standards in Section 5-2.2.100D and the procedures in Section 5-4.9.020. | S | S | S | |
| Office, floor area (limited to 2,000 square feet floor area per use) | N | N | P | |
| Outdoor Recreation, Commercial | N | N | N | |
| Quick Vehicle Servicing or Vehicle Repair | N | N | N | |
| Retail Sales and Commercial Services (limited to 2,000 square feet floor area per use) | N | N | P | |
| Self-Service Storage | N | N | N | |
| Short-Term Vacation Rental, per Section 5-2.2.100H | S | S | S | |
| Industrial Categories | ||||
| Industrial Service, enclosed in primary building | N | N | CU | |
| Manufacturing and Production, enclosed in primary building | N | N | CU | |
| Warehouse and Freight Movement | N | N | N | |
| Waste-Related | N | N | N | |
| Wholesale Sales | N | N | N | |
| Institutional Categories | ||||
| Basic Utilities | P | P | P | |
| Community Service, no drive-up uses | ||||
| - limited to 2,000 square feet floor area | CU | CU | P | |
| - exceeds 2,000 square feet floor area | N | N | CU | |
| Daycare | ||||
| Family Daycare (16 or fewer children) as allowed under ORS 657A.250 and ORS 657A.440(4), subject to State licensing | P | P | P | |
| Daycare Center subject to State licensing | CU | CU | P | |
| Adult daycare, subject to State licensing | P | P | P | |
| Parks and Open Space | CU | CU | CU | |
| Parks and Open Space, when designated on an adopted Specific Area Plan, or when part of a subdivision application (Chapter 5-4.3) or master planned development application (Chapter 5-4.5) | P | P | P | |
| Religious Institutions and Houses of Worship | CU | CU | CU | |
| Schools | CU | CU | CU | |
| Other Categories | ||||
| Accessory Structures (with a permitted use) | ||||
| - no taller than 14 ft. and no larger than 1,000 square feet of building footprint | P | P | P | |
| - taller than 14 ft. or larger than 1,000 square feet of building footprint | CU | CU | CU | |
| Agriculture – Animals | ||||
| - Livestock, limited to 1 head of cattle, horse, sheep, or similar size animal per ½ acre undeveloped pasture. Swine: 1 per ½ acre | P | P | N | |
| Small Animals (e.g., chickens, chukar, rabbits), excluding roosters and swine: limited to 5 of each type of animal. (Amended by Ord. 12-151-01, January 12, 2012) | P | P | P | |
| Agriculture – Nurseries and similar horticulture (indoor or outdoor) | N | N | CU | |
| Mining | N | N | N | |
| Radio Frequency Transmission Facilities | CU | CU | CU | |
| Utility Corridors, Regional | ||||
| Regional utility corridors extending through the City and existing prior to November 24, 2005 are permitted. All other regional utility corridors require a conditional use permit. | CU | CU | CU | |
| Temporary Uses (limited to “P” and “CU” uses), per Section 5-4.9.010. | P/CU | P/CU | P/CU | |
| Transportation Facilities (operation, maintenance, preservation, and construction in accordance with the City’s Transportation System Plan) | P | P | P | |
Key:
P = Permitted, subject to site/development review
S = Permitted with standards (Section 5-2.2.100)
CU = Conditional Use permit required (Chapter 5-4.4)
N = Not permitted
The development standards in Table 5-2.2.030 apply to all uses, structures, buildings, and development, and major remodels, in the Residential Districts.
| Table 5-2.2.030 – Development Standards for Residential Districts (except as modified by 5-4.4 Master Planned Development) | ||||
| Standard | RL | RG | RC | [Reserve] |
| Minimum Lot Area* (square feet) | ||||
| Single Family, not attached | 5,000 sf | 10,000 sf | 5,000 sf | |
| Single Family, attached | 4,000 sf | 6,000 sf | 3,000 sf | |
| Single Family with Secondary DU | 7,500 sf | 10,000 sf | 6,000 sf | |
| Duplex | 7,500 sf | 12,000 sf | 7,500 sf | |
| Multiple-Family or Cottage Cluster | 10,000 sf | 12,000 sf | 10,000 sf | |
| Non-Residential Uses | 10,000 sf | 10,000 sf | 10,000 sf | |
| Lot Size on Slopes >20%, except as modified through a Master Planned Development | 10,000 sf | 10,000 sf | 10,000 sf | |
| *Average lot size in land divisions may be reduced through lot size averaging. See related procedures in Chapter 5-4.3.020. Minimum lot sizes do not apply to open space tracts. | ||||
| Minimum Lot Width | ||||
| Single Family, not attached | 40 ft | 40 ft | 40 ft | - |
| Single Family, attached | 20 ft | 20 ft | 20 ft | - |
| Duplex | 50 ft | 50 ft | 50 ft | - |
| Multiple-Family or Cottage Cluster | 50 ft | 50 ft | 50 ft | - |
| Non-Residential Uses | 20 ft | 20 ft | 20 ft | - |
| For flag lots, width is measured at the front building line. | ||||
| Minimum Lot Depth | 2 times min. width | 2 times min. width | 2 times min. width | |
| *Lot area must conform to the standards above. Lot dimensions may be reduced for Flag Lots, Section 5-4.3.040. | ||||
| Building/Structure Height (See also, Sections 5-2.2.040 Setback Yards; 5-2.2.050, Infill Standards; 5-2.2.080, RL Height Step-Down; 5-3.1.020, Clear Vision, and 5-3.2.050, Fences and Walls.) | ||||
| Level Site (slope less than 15%), maximum height | 35 ft 45 ft with CUP | 35 ft 45 ft with CUP | 35 ft 45 ft with CUP | |
| Sloping Site (15% or greater), maximum height | level site +5 | level site +5 | level site +5 | |
| Building Height Transition Required Adjacent to RL District, per Section 5-2.2.080 | No | Yes | Yes | |
| Fences, Retaining/Garden Walls See requirements in Section 5-3.2.050 | ||||
| Lot Coverage (two options)
1. Maximum Building Coverage (Foundation plane as % of lot area) | ||||
| Single-Family Dwelling | 50% | 40% | 50% | |
| Single Family – Common Wall | 70% | 60% | 70% | |
| Duplex | 60% | 60% | 60% | |
| Multifamily or Cottage Cluster | 60% | 60% | 60% | |
| Mixed-Use/Live-Work/Commercial | NA | NA | 70% | |
| Civic/Institutional/Open Space | 60% | 60% | 60% | |
| 2. Coverage Bonus | The allowable building coverage increases by a ratio of one-half (1/2) square foot for every one (1) square foot of required parking area that is paved using a City-approved porous/permeable paving material (i.e., allowing stormwater infiltration) or one-half (1/2) square foot for every one (1) square foot of City-approved water quality treatment area (e.g., vegetative swale or biofiltration) on the development site. | |||
| Min. Landscape Area (% site area), except does not apply to Single Family Dwellings. Landscape area may include plant areas and some non-plant areas as allowed under Section 5-3.2.030.D. | 7% | 10% | 7% | |
| Minimum Setbacks (feet): (See also, Sections 5-2.2.040 Setback Yards; 5-2.2.050, Infill Standards; 5-2.2.080, RL Height Step-Down; 5-3.1.020, Clear Vision, and 5-3.2.050, Fences and Walls.) | ||||
| Front/Street Setback (includes corner yards abutting street) | ||||
| Standard Minimum Setback | 15 ft | 15 ft | 10 ft | |
| Garages and Carport Entries (minimum distance from garage/carport opening to sidewalk or right-of-way, whichever is closest) | 20 ft | 20 ft | 20 ft | |
| Open Structures (e.g., porch, balcony, portico, patio, wall), where structure is less than 50% enclosed on side elevations and does not encroach into utility easement | 5 ft | 5 ft | 5 ft | |
| Note: Other standards may preclude building at a minimum setback. Avoid utilities and easements. See also, special setbacks for planned street improvements. | ||||
| Side Setback, except alleys and corner lots (total of 2 sides, 3 ft minimum) | ||||
| Structure >28’ height | 10 ft total | 15 ft total | 10 ft total | |
| Structure 16’-28’ height | 10 ft total | 12 ft total | 10 ft total | |
| Structure </=16’ height | 10 ft total | 10 ft total | 10 ft total | |
| Garage/Carport Entry, except alley | 20 ft | 20 ft | 20 ft | |
| Exceptions* | ||||
| Alley | 3 ft | 3 ft | 3 ft | |
| Open Structures (e.g., porch, balcony, portico, patio wall), where structure is less than 50% enclosed on side elevations | 5 ft min. on side with open structure | 5 ft min. on side with open structure | 5 ft min. on side with open structure | |
| Common Walls/Zero Lot Line | 10 ft one side | 10 ft one side | 10 ft one side | |
| *Sight distances shall be maintained along arterial and collector streets, per City standards. The City may defer to guidelines from the American Association of State Highway Officials (AASHTO). | ||||
| Rear Setback | ||||
| Standard Setback, except as approved for Common Walls | 10 ft | 15 ft | 10 ft | |
| Alley Setbacks | 3 ft | 3 ft | 3 ft | |
| Build-To Line (feet): | ||||
| New Buildings Only: At least one primary building entrance shall be built no farther from the street right-of-way than the build-to line (See also, Section 5-2.3.090) | Not applicable | Not applicable | 20 ft | |
| Special Setback for Planned Street Improvements | The City may require a minimum setback of up to 40 feet, measured from the street centerline to any structure, when a structure would abut a street containing less than the standard right-of-way for the subject street classification. Street classification and required right-of-way are as indicated by the City of John Day Transportation System Plan. | |||
The purpose of Section 5-2.2.050 is to ensure compatibility of new development and redevelopment to existing residences and to provide flexibility in code standards. The setback standard in Section 5-2.2.050 supplements the standards in Table 5-2.2.030 when a building or building addition is proposed on a lot in a Residential District that was platted prior to November 24, 2005. The approval body shall use the criteria and standards in subsections A and B, below, in determining applicable setbacks and building heights.
Allowable housing densities are calculated by dividing the total parcel or lot area by the applicable lot size standard after subtracting street rights-of-way. Areas reserved for flag lot access (flag poles) are not counted for the purpose of calculating minimum lot sizes.
Building heights shall conform to the standards in Table 5-2.2.030, and subsections A-C, below:
Section 5-2.2.100 provides standards for specific land uses and building types, as identified in Table 5-2.2.020 that control the scale and compatibility of those uses within Residential Districts. The standards in Section 5-2.2.100 supplement (are in addition to and do not replace) the standards in Sections 5-2.2.010 through 5-2.2.090. This Section applies to the following uses and building types:
A. Accessory Dwelling
B. Attached Single Family (Townhouses or Rowhouses) and Attached Duplexes
D. Group Living (Residential Care Homes and Residential Care Facilities)
E. Home Occupations
F. Manufactured Homes
G. Manufactured/Mobile Home Parks
H. Multiple Family Housing
I. Short-Term Vacation Rentals
J. Zero-Lot Line Housing (not common wall)
K. Temporary Medical Hardship Dwellings
L. Manufactured Homes and RVs as Temporary Dwellings
This Chapter provides two commercial districts to accommodate the range of commercial land uses in the community. The Downtown District is focused on the core commercial and civic (i.e., the central business) area of the community. The General Commercial District regulations apply to those commercial areas outside or adjacent to the central business area. Both districts are intended to:
Table 5-2.3.020 identifies the land uses that are allowed in the Commercial Districts. The specific land use categories are described and uses are defined in Chapter 5-1.3.
| Table 5-2.3.020 – Land Uses Allowed in Commercial Districts (D, GC) | |||
| Uses | Status of Use in District | ||
| Use Categories (Examples of uses are in Chapter 5-1.4; definitions are in Chapter 5-6.1.) | Downtown (D) | General Commercial (GC) | [Reserve] |
| Residential Categories | |||
| Household Living | |||
| All Residential Uses and Structures (Household Living and Group Living) allowed, if: | |||
| - lawfully existing as of November 24, 2005* | P | P | |
| - a dwelling that does not occupy ground floor space fronting Main Street* | P | P | |
| *In the event of involuntary damage or destruction due to fire or other event beyond the owner’s control, a residential use lawfully existing in the Downtown as of November 24, 2005 may be rebuilt and reestablished pursuant with Section 5-5.2.020 through 5-5.2.030. A dwelling unit that existed prior to November 24, 2005 but was not used as a residence on that date may convert back to residential use, but may not be expanded upon. This provision does not apply to a dwelling unit that occupies ground floor space fronting Main Street. (Amended by Ord. #19-179-03, [11-12-2019]) Group Living Uses shall conform to the provisions in Section 5-2.2.100. | |||
| Commercial Categories | |||
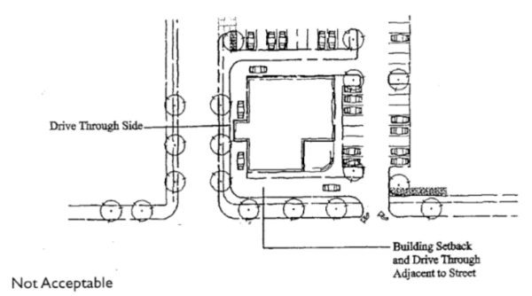
| Drive-Up/Drive-In/Drive-Through (drive-up windows, kiosks, ATM’s, similar uses/facilities), per Section 5-2.3.100A | CU+S | CU+S | |
| Short-Term Vacation Rental per Section 5-2.2.100H | S | S | |
| Educational Services, not a school (e.g., tutoring or similar services) | P | P | |
| Entertainment, Major Event | CU | CU | |
| Offices | P | P | |
| Outdoor Recreation, Commercial | CU | CU | |
| Parking Lot (when not an accessory use) | CU | CU | |
| Quick Vehicle Servicing or Vehicle Repair. (See also Drive-Up/Drive-In/Drive-Through Uses, per Section 5-2.3.100A) | |||
| - fully enclosed (e.g., garage) | CU | P | |
| - not enclosed, except accessory uses | N | CU | |
| Retail Sales and Commercial Services (See also Drive-Up Uses, per Section 5-2.3.100A) | P | P | |
| -Marijuana Retailer per Section | CU/S | CU/S | |
| -Medical Marijuana Dispensary | CU/S | CU/S | |
| Self-Service Storage | N | CU | |
| Industrial Categories | |||
| Industrial Service (See also Drive-Up Uses) | |||
| - fully enclosed (e.g., office) | P | P | |
| - not enclosed | N | CU | |
| Marijuana Testing Laboratory | CU/S | CU/S | |
| Manufacturing and Production | |||
| - fully enclosed | P | P | |
| - not enclosed | N | CU | |
| -Marijuana Production Facility | N | CU/S | |
| -Marijuana Processing Facility | N | CU/S | |
| Warehouse and Freight Movement | N | CU | |
| Waste-Related | N | N | |
| Wholesale Sales | |||
| - fully enclosed, less than 20,000 square feet of floor area | CU | P | |
| - fully enclosed, equal to or greater than 20,000 square feet of floor area | N | CU | |
| - not enclosed | N | CU | |
| -Marijuana Wholesaler | CU/S | CU/S | |
| Institutional Categories | |||
| Basic Utilities | P | P | |
| Community Service | P | P | |
| Daycare | |||
| Family Daycare (16 or fewer children) as allowed under ORS 657A.250 and ORS 657A.440(4), subject to State licensing | P | P | |
| Daycare Center subject to State licensing | CU | CU | |
| Adult daycare, subject to State licensing | P | P | |
| Parks and Open Space, consistent with a downtown plan or in conjunction with a business (e.g., plaza, pocket park, etc.) | P | P | |
| Other Parks and Open Space uses | CU | CU | |
| Religious Institutions and Houses of Worship | |||
| - lawfully existing as of November 24, 2005 | P | P | |
| - new | CU | CU | |
| Schools | |||
| - lawfully existing as of November 24, 2005 | P | P | |
| - new | CU | CU | |
| Other Categories | |||
| Accessory Structures (with a permitted use) | P | P | |
| Buildings and Structures Exceeding the Height Limits in Table 5-2.3.030 | CU | CU | |
| Radio Frequency Transmission Facilities, including building-mounted facilities, that project above roofline | CU | CU | |
| Utility Corridors | CU | CU | |
| Temporary Uses (limited to “P” and “CU” uses), per Section 5-4.9.010. | P/CU | P/CU | |
| Transportation Facilities (operation, maintenance, preservation, and construction in accordance with the City’s Transportation System Plan) | P | P | |
Key:
P = Permitted, subject to site/development review
S = Permitted with standards (See cross-reference)
CU = Conditional Use permit required (Chapter 5-4.4)
N = Not permitted
CU/S = Conditional use with standards (Section 5-2.4.070)
The development standards in Table 5-2.3.030 apply to all new structures, buildings, and development, and major remodels, in the Commercial Districts.
| Table 5-2.3.030 – Development Standards for Commercial Districts | |||
| Standard | D | GC | [Reserve] |
| Minimum Lot Area* (square feet) | 2,000 sf | 2,000 sf | |
| *Development must conform to lot width, depth, yard setback and coverage standards. | |||
| Minimum Lot Width | |||
| Single Family, not attached | 40 ft | 40 ft | |
| Single Family, attached | 20 ft | 20 ft | |
| Duplex | 50 ft | 50 ft | |
| Multiple-Family | 50 ft | 50 ft | |
| Non-Residential Uses | 20 ft | 20 ft | |
| For flag lots, width is measured at the front building line. | |||
| Minimum Lot Depth | 2 times min. width | 2 times min. width | |
| Building/Structure Height | |||
| Height may be increased with Conditional Use Permit, per Chapter 5-4.4. Height transition required adjacent to RL District, per Section 5-2.2.080. | 60 ft | 45 ft | |
| Fences, Retaining/Garden Walls: See Section 5-3.2.050 | |||
| Lot Coverage, maximum building coverage (Foundation plane as % of site area) | 95% | 90% | |
| Landscape Area (% site area), except does not apply to single family dwellings. Landscape area may include a combination of plant beds, planters, and plaza space | 5% | 10% | |
| Minimum Setbacks (feet): (See also, Section 5-2.2.080, RL Height Step-Down.) | |||
| Front, Street, Side, and Rear property lines, except garage or carport | 0 ft | 0 ft | |
| Garage/Carport Entry, setback from street | 20 ft | 20 ft | |
| Alley | 3 ft | 3 ft | |
| Adjacent to RL District | 10 ft, and per Section 5-2.2.080 | 10 ft, and per Section 5-2.2.080 | |
| Build-To Line (feet): | |||
| New Buildings Only: At least one primary building entrance shall be built no farther from the street right-of-way than the build-to line; except where a greater setback is required for a Planned Street Improvement, then the build-to line increases proportionately. The build-to line may also be increased through Site Design Review when pedestrian amenities are provided between a primary building entrance and the street right-of-way. (See also, Section 5-2.3.090.) | 0 ft; may be increased when pedestrian amenities are provided between a primary building entrance and street | 60 ft; may be increased when a shopping street connects the primary building entrance(s) to the street, per Section 5-2.3.060.D | |
| Special Setback for Planned Street Improvements | The City may require a minimum setback of up to 40 feet, measured from the street centerline to any structure, when a structure would abut a street containing less than the standard right-of-way for the subject street classification. Street classification and required right-of-way are as indicated by the City of John Day Transportation System Plan. | ||
Lot coverage and impervious surfaces are calculated as provided under Section 5-2.2.070.
This section supplements the standards contained in Sections 5-2.3.020 through 5-2.3.090. It provides standards for the following land uses to control the scale and compatibility of those uses:
Drive-up and Drive-through Uses and Facilities
Marijuana Businesses
Chapter 5-2.4 accommodates a range of industrial and commercial land uses in three Industrial Districts, Light Industrial (LI), General Industrial (GI), and Airport Industrial Park (AIP). The districts are intended to provide for land use compatibility while providing a high-quality environment for businesses and employees. The AIP district is also intended to provide for compatible land use adjacent to Ogilvie Field, and provide for economic development consistent with Oregon’s Certified Industrial Lands program. The GI district is intended to provide suitable locations for heavy industrial uses (e.g., raw materials processing; and manufacturing, assembly, packaging or distribution of heavy or large goods) that would not otherwise be compatible in other districts. Chapter 5-2.4 guides the orderly development of industrial areas based on the following objectives:
Table 5-2.4.020 identifies the land uses that are allowed in the Industrial Districts. The specific land use categories are described and uses are defined in Chapter 5-1.3.
| Table 5-2.4.020 – Land Uses Allowed in Industrial Districts | |||
| Uses | Status of Use in District | ||
| Use Categories (Examples of uses are in Chapter 5-1.3; definitions are in Chapter 5-6.1.) | General Industrial (GI) | Light Industrial (LI) | Airport Industrial Park (AIP |
| Residential Categories | |||
| Household Living | |||
| Residential Uses (Household Living and Group Living) allowed, if: | |||
| - Lawfully existing as of November 24, 2005 | P | P | N |
| - New dwelling built in conjunction with a permitted commercial or industrial use | N | P | CU/S |
| - Manufactured dwelling on an individual lot, subject to Section 5-2.2.100F. | N | N | N |
| - Manufactured dwelling park | N | N | N |
| Group Living Uses, if allowed above, shall conform to the provisions in Section 5-2.2.100D. | |||
| Commercial Categories | |||
| Drive-Up/Drive-In/Drive-Through (drive-up windows, kiosks, ATM’s, similar uses/facilities), per Section 5-2.3.100A for uses in LI District | P | S | N except “P” when accessory to a industrial use |
| Short-Term Vacation Rental | N | N | N |
| Educational Services, not a school (e.g., tutoring or similar services) | N | CU | CU |
| Entertainment, Major Event | N | CU | CU |
| Offices | P | P | P |
| Outdoor Recreation, Commercial | N | CU | CU |
| Parking Lot (when not an accessory use) | CU | CU | CU |
| Quick Vehicle Servicing or Vehicle Repair (See also Drive-Up Uses, Section 5.2.3.100A) | P | S | CU |
| Retail Sales and Commercial Service, | |||
| - less than 10,000 square feet floor area | CU | P | CU |
| - greater than 10,000 square feet floor area, per Section 5-2.4.050 | N | N | CU |
| Self-Service Storage | P | CU | P |
| Industrial Categories | |||
| Industrial Service (See also Drive-Up Uses) | |||
| - fully enclosed (e.g., office) | P | P | P |
| - not enclosed | P | CU | P |
| Marijuana Testing Laboratory per Section 5-2.4.070 per Section 5-2.4.070, if applicable per Section 5-2.4.070 | S | S | S |
| Manufacturing and Production | |||
| - fully enclosed | P | P | P |
| - not enclosed | P | CU | P |
| -Agricultural Processing | S | S | S |
| -Marijuana Processing Facility | CU/S | CU/S | CU/S |
| -Marijuana Production Facility | CU/S | CU/S | CU/S |
| -Industrial Hemp Production | S | S | S |
| Warehouse and Freight Movement | P | CU | P |
| Waste-Related | CU | N | N |
| Wholesale Sales, per Section 5-2.4.070 per Section 5-2.4.050 | |||
| - fully enclosed | P | P | N except “P” when accessory to a industrial use |
| - not enclosed | P | CU | |
| -Marijuana Wholesaler | S | S | S |
| Institutional Categories | |||
| Basic Utilities | P | P | N except “P” for utilities required to serve AIP district |
| Community Service, except as otherwise allowed by Public Facilities Overlay zone | N except “P” for public safety facilities | N except “P” for public safety facilities | N except “P” for public facilities |
| Daycare | N | N | N |
| Parks and Open Space, except open space areas are permitted by right when accessory to a primary permitted use | CU | CU | CU |
| Religious Institutions and Houses of Worship | N | CU | N |
| Schools, except education uses are permitted by right when accessory to a primary permitted use (e.g., flight instruction at airport, or vocational instruction in conjunction with industrial use) | N | CU | N |
| Other Categories | |||
| Accessory Structures (with a permitted use) | P | P | P |
| Agriculture – Animals, when | |||
| - existing use as of November 24, 2005 | P | P | Not applicable |
| - accessory to a permitted industrial use | P | N | P |
| - new use | N | N | N |
Agriculture – Nurseries and similar horticulture (See also, Wholesale and Retail Uses) per Section 5-2.4.070, when applicable | S | S | S |
| Buildings and Structures Exceeding the Height Limits in Section 5-2.4.060 | CU | CU | N Except as required per Ogilvie Field Airport Master Plan |
| Mining | CU | N | N |
| Radio Frequency Transmission Facilities | |||
| - within height limit of district | P | P | N except “P” in conjunction with airport operations |
| - exceeds height limit (free-standing or building-mounted facilities) | CU | CU | |
| Rail Lines and Utility Corridors, except those existing prior to November 24, 2005 are allowed. | CU | CU | P |
| Temporary Uses (limited to “P” and “CU” uses), per Section 5-4.9.010. | P/CU | P/CU | P/CU |
| Transportation Facilities (operation, maintenance, preservation, and construction in accordance with the City’s Transportation System Plan) | P | P | P |
Key:
P = Permitted, subject to site/development review
S = Permitted with standards (See cross-reference)
CU = Conditional Use permit required (Chapter 5-4.4)
N = Not permitted
CU/S = Conditional use with standards (5-2.4.070)
Industrial uses and developments shall be oriented on the site to accommodate multiple modes of transportation (pedestrians, vehicles, bicycles), to minimize adverse impacts (e.g., noise, glare, smoke, dust, exhaust, vibration, etc.) on adjacent uses, and to provide compatibility with adjacent uses to the extent practicable. The following standards shall apply to all development in the General Industrial and Light Industrial Districts:
The maximum allowable height of buildings and structures in the GI, LI, and AIP districts is 35 feet, except that taller buildings and structures are allowed when approved as part of a Conditional Use Permit, provided they conform to the RL height step-down standards in Section 5-2.2.080.C.
Section 5-2.4.070 supplements the standards contained in Sections 5-2.4.020 through 5-2.4.060. It provides standards for the following land uses to control the scale and compatibility of those uses:
The purpose of the AASC overlay zone is to encourage and support the continued operation and vitality of Ogilvie Field and to support compatible land uses adjacent to the airport. The overlay establishes land use compatibility and navigational safety standards to reduce potential safety hazards for persons living, working and recreating near Ogilvie Field, consistent with applicable State law and administrative rules. [ORS 836.600; ORS 836.619; OAR 660-013-0070; OAR 660-013-0080]
The following definitions are incorporated consistent with applicable State law and administrative rules. [ORS 836.605; ORS 836.623(6); OAR 660-013-0020; OAR 660-013- 0070(1)A., B.; OAR 660-013-0080(1)A.]
Airport. The strip of land used for taking off and landing aircraft, together with all adjacent land used in connection with the aircraft landing or taking off from the strip of land, including but not limited to land used for existing airport uses.
Airport Direct Impact Area. The area located within 5,000 feet of an airport runway, excluding lands within the runway protection zone and approach surface.
Airport Elevation. The highest point of an airport's usable runway, measured in feet above mean sea level.
Airport Imaginary Surfaces. Imaginary areas in space and on the ground that are established in relation to the airport and its runways. Imaginary areas are defined by the primary surface, runway protection zone, approach surface, horizontal surface, conical surface and transitional surface.
Airport Noise Impact Boundary. Areas located within 1,500 feet of an airport runway or within established noise contour boundaries exceeding 55 Ldn.
Airport Secondary Impact Area. The area located between 5,000 and 10,000 feet from an airport runway.
Airport Sponsor. The owner, manager, or other person or entity designated to represent the interests of an airport.
Approach Surface. A surface longitudinally centered on the extended runway centerline and extending outward and upward from each end of the primary surface.
Conical Surface. A surface extending outward and upward from the periphery of the horizontal surface at a slope of 20 to 1 for a horizontal distance of 4,000 feet.
Department of Aviation. The Oregon Department of Aviation, formerly the Aeronautics Division of the Oregon Department of Transportation.
FAA. The Federal Aviation Administration.
FAA's Technical Representative. As used in this ordinance, the federal agency providing the FAA with expertise on wildlife and bird strike hazards as they relate to airports. This may include, but is not limited to, the USDAAPHIS-Wildlife Services.
Height. The highest point of a structure or tree, plant or other object of natural growth, measured from mean sea level.
Horizontal Surface. A horizontal plane 150 feet above the established airport elevation, the perimeter of which is constructed by swinging arcs of specified radii from the center of each end of the primary surface of each runway of each airport and connecting the adjacent arcs by lines tangent to those arcs. The radius of each arc is:
Non-precision Instrument Runway. A runway having an existing instrument approach procedure utilizing air navigation facilities with only horizontal guidance, or area type navigation equipment, for which a straight-in non-precision instrument approach has been approved, or planned, and for which no precision approach facilities are planned or indicated on an FAA approved airport layout plan or other FAA planning document.
Obstruction. Any structure or tree, plant or other object of natural growth that penetrates an imaginary surface.
Other than Utility Runway. A runway that is constructed for and intended to be used by turbine driven aircraft or by propeller-driven aircraft exceeding 12,500 pounds gross weight.
Precision Instrument Runway. A runway having an existing instrument approach procedure utilizing air navigation facilities that provide both horizontal and vertical guidance, such as an Instrument Landing System (ILS) or Precision Approach Radar (PAR). It also means a runway for which a precision approach system is planned and is so indicated by an FAA-approved airport layout plan or other FAA planning document.
Primary Surface. A surface longitudinally centered on a runway. When a runway has a specially prepared hard surface, the primary surface extends 200 feet beyond each end of that runway. When a runway has no specially prepared hard surface, or planned hard surface, the primary surface ends at each end of that runway. The elevation of any point on the primary surface is the same as the elevation of the nearest point on the runway centerline. The width of the primary surface is:
Public Assembly Facility. For the purposes of Chapter 5-2.5, a permanent or temporary structure or facility, place or activity where concentrations of people gather in reasonably close quarters for purposes such as deliberation, education, worship, shopping, employment, entertainment, recreation, sporting events, or similar activities. Public assembly facilities include, but are not limited to, schools, churches, conference or convention facilities, employment and shopping centers, arenas, athletic fields, stadiums, clubhouses, museums, and similar facilities and places, but do not include parks, golf courses or similar facilities unless used in a manner where people are concentrated in reasonably close quarters. Public assembly facilities also do not include air shows, structures or uses approved by the FAA in an adopted airport master plan, or places where people congregate for short periods of time such as parking lots or bus stops.
Runway. A defined area on an airport prepared for landing and takeoff of aircraft along its length.
Runway Protection Zone (RPZ). An area off the runway end used to enhance the protection of people and property on the ground. The RPZ is trapezoidal in shape and centered about the extended runway centerline. The inner width of the RPZ is the same as the width of the primary surface. The outer width of the RPZ is a function of the type of aircraft and specified approach visibility minimum associated with the runway end. The RPZ extends from each end of the primary surface for a horizontal distance of:
[NOTE: The outer width of the RPZ is specified by airport type in OAR 660, Div. 13, Exhibit 4]
Significant. As it relates to bird strike hazards, "significant" means a level of increased flight activity by birds across an approach surface or runway that is more than incidental or occasional, considering the existing ambient level of flight activity by birds in the vicinity.
Structure. Any constructed or erected object which requires location on the ground or is attached to something located on the ground. Structures include but are not limited to buildings, decks, fences, signs, towers, cranes, flagpoles, antennas, smokestacks, earth formations and overhead transmission lines. Structures do not include paved areas.
Transitional Surface. Those surfaces that extend upward and outward at 90 degree angles to the runway centerline and the runway centerline extended at a slope of seven (7) feet horizontally for each foot vertically from the sides of the primary and approach surfaces to the point of intersection with the horizontal and conical surfaces. Transitional surfaces for those portions of the precision approach surfaces which project through and beyond the limits of the conical surface, extend a distance of 5,000 feet measured horizontally from the edge of the approach surface and at a 90 degree angle to the extended runway centerline.
Utility Runway. A runway that is constructed for and intended to be used by propeller driven aircraft of 12,500 pounds maximum gross weight or less.
Visual Runway. A runway intended solely for the operation of aircraft using visual approach procedures, where no straight-in instrument approach procedures or instrument designations have been approved or planned, or are indicated on an FAA-approved airport layout plan or any other FAA planning document.
Water Impoundment. Includes wastewater treatment settling ponds, surface mining ponds, detention and retention ponds, artificial lakes and ponds, and similar water features. A new water impoundment includes an expansion of an existing water impoundment except where such expansion was previously authorized by land use action approved prior to the effective date of the AASC ordinance.
The airport elevation, the airport noise impact boundary, and the location and dimensions of the runway, primary surface, runway protection zone, approach surface, horizontal surface, conical surface and transitional surface, as delineated by the Ogilvie Field Airport Master Plan, are hereby made part of the Official City of John Day Zoning Map.
All lands, waters and airspace, or portions thereof, that are located within these boundaries or surfaces shall be subject to the requirements of this overlay zone. [ORS 836.619; OAR 660-0130040(8); OAR 660-013-0070(1); OAR 660-013-0080(1)]
Except as otherwise provided herein, written notice of applications for land use or limited land use decisions, including comprehensive plan or zoning amendments, in an area within this overlay zone, shall be provided to the airport sponsor and the Department of Aviation in the same manner as notice is provided to property owners entitled by law to written notice of land use or limited land use applications. See Development Code Article 5-4. [ORS 836.623(1); OAR 738-100-010; ORS 215.416(6); ORS 227.175(6)]
All uses permitted by the underlying zone shall comply with the height limitations in this Section. When height limitations of the underlying zone are more restrictive than those of this overlay zone, the underlying zone height limitations shall control. [ORS 836.619; OAR 660-0130070]
An applicant seeking a land use or limited land use approval in an area within this overlay zone shall provide the following information in addition to any other information required in the permit application:
Applications for land use or building permits for properties within the boundaries of this overlay zone shall comply with the requirements of this chapter as provided herein. [ORS 836.619; OAR 660-013-0080]
Any use or activity that would result in the establishment or expansion of a water impoundment shall comply with the requirements of this section. [ORS 836.623(2); OAR 660-013-0080(1)(f)]
Within this overlay zone, property owners who apply for land use or limited land use decisions, for building permits for new residential, commercial, industrial, institutional or recreational buildings or structures intended for inhabitation or occupancy by humans or animals, or for expansions of such buildings or structures by the lesser of 50% or 1,000 square feet, shall, as a condition of obtaining such approval or permits, dedicate an avigation easement to the airport sponsor. The avigation easement shall be in a form acceptable to the airport sponsor and shall be signed and recorded in the deed records of the County. The avigation easement shall allow unobstructed passage for aircraft and ensure safety and use of the airport for the public. Property owners or their representatives are responsible for providing the recorded instrument prior to issuance of building permits.
In any zone which is a GH Geological Hazard Overlay, the requirements and standards of this Chapter shall apply in addition to those of the underlying zone; provided, that if a conflict in regulations or standards occurs, the provisions of this Chapter shall govern. The purpose of the GH overlay zone is to promote the public safety and welfare by preventing certain types of development in those areas which natural hazards or other factors pose threats to human occupancy safety.
The provisions of this Chapter shall apply to all areas of special geological hazards within the jurisdiction of the City. The areas of special geological hazard identified by the Oregon Department of Geology and Mineral Industries in a report entitled “Engineering Geology of the John Day Area, Grant County, Oregon – Dated 1975” are hereby adopted by reference and declared to be a part of this Title, and thereof, the provisions of this Chapter shall apply to all geological hazard areas identified by said report.
In a zone with which the GH Zone is an overlay, the following uses are the only uses permitted outright, and these uses are permitted only if such uses are permitted in the zone regulations for the primary zone:
In a zone with the GH overlay, those uses permitted by the primary zone shall be permitted, subject to this Chapter and the provisions of the primary zone.
No person shall construct, reconstruct or install a development, install a mobile home, or divide land in a GH Zone unless a permit has been received for the work, except for those uses permitted by 5-2.6.040 of this Chapter. Except for improvement of an existing structure which is less than substantial as determined by a certified building official or the City upon appeal, no permit shall be issued unless the work will be reasonably safe from geological hazard and otherwise comply with this Chapter and this Title, and other applicable regulations. Said permits shall be processed in the same manner as a conditional use permit under this Title as set forth in Chapter 5-4.4 of this Title.
An application for a use or development in a GH overlay zone shall be accompanied by the following:
An access route within a GH overlay zone shall comply with the following:
The degree of geological hazard protection afforded by the provisions of this Title is considered reasonable for regulatory purposes and is based upon engineering and scientific methods of study. Greater hazards than those anticipated by these provisions may occur on occasion or the natural hazard may be increased by human or natural causes. The identification of areas subject to geological hazards pursuant to the provisions of this Title does not imply that lands outside such areas will be free from such hazards. This Title shall not create liability on the part of the City or any office or employee thereof for any damages that result from reliance of the provisions or designations of this Title or any administrative decisions lawfully made thereunder.
The Park Reserve (PR) Zone applies to park lands, existing and/or proposed, consistent with the John Day Comprehensive Plan and as designated on the Zoning Map. The purpose of the PR zone is to promote the public safety and welfare by preventing certain types of development in those areas which are best suited or deemed necessary for public protection against development for parks, open space or other natural resource qualities not protected by other zone designations.
In a PR zone, the following uses and their accessory facilities are permitted outright. New development or modification of existing development may be subject to Land Use Review or Site design Review procedures as described in Chapter 5-4.2 of this title.
In a PR zone, the following uses and their accessory uses are permitted when authorized in accordance with Chapter 5-4.4 of this Title:
In a PR zone, the following dimensional standards shall apply:
In a PR ozone, the following setback requirements shall apply:
In addition to the standards and conditions that may be attached to the approval of a conditional use as provided by Chapter 5-4.4 of this Title, the following limitations shall apply to a conditional use in a PR zone:
The Greenway (GW) Overlay applies to riparian areas and other open spaces, consistent with the John Day Comprehensive Plan and as designated on the Zoning Map. In any zone which is a GW overlay zone, the requirements and standards of this Chapter shall apply in addition to those of the underlying zone; provided, that if a conflict in regulations or standards occurs, the provisions of this Chapter shall govern. The purpose of the GW overlay zone is to provide an area adjoining certain identified streams which is uncluttered and unobstructed by structures or other personal property on the land within the zone.
In a GW overlay zone, the following uses are permitted outright:
All uses not included in Section 5-2.8.020 shall be conditional uses and subject to approval in accordance with the provisions of Chapter 5-4.4 of this Title and limitations of Section 5-2.8.040 of this Chapter.
No use shall be permitted that is not in compliance with the following conditions:
In addition to the standard notice requirements, notice of any application for a use in a GW overlay zone shall be provided to the affected resource managing agency(s).
The GW overlay zone shall comprise an area abutting Canyon Creek and the John Day River, on each side thereof, for a distance perpendicular to and (20 feet for Canyon Creek) (20 feet for John Day River) distant from the normal average high water mark or identifiable stream channel.
The following factors, at a minimum, shall be considered in the review of an application for a land use in the GW overlay zone:
A. Statutory Authorization
The State of Oregon has in ORS 197.175 delegated the responsibility to local governmental units to adopt floodplain management regulations designed to promote the public health, safety, and general welfare of its citizenry. Therefore, the City of John Day does ordain as follows:
B. Findings of Fact
I. The flood hazard areas of John Day are subject to periodic inundations which may result in loss of life and property, health and safety hazards, disruption of commerce and governmental services, extraordinary public expenditures for flood protection and relief and impairment of the tax base, all of which adversely affect the public health, safety, and general welfare.
II. The flood losses may be caused by the cumulative effect of obstructions in special flood hazard areas which increase flood heights and velocities, and when inadequately anchored, cause damage in other areas. uses that are inadequately floodproofed, elevated, or otherwise protected from flood damage also contribute to flood loss.
C. Statement of Purpose
It is the purpose of this ordinance to promote public health, safety, and general welfare, and to minimize public and private losses due to flooding in flood hazard areas by provisions designed to:
D. Methods of Reducing Flood Losses
In order to accomplish its purposes, this ordinance includes methods and provisions for:
Unless specifically defined below, words or phrases used in this ordinance shall be interpreted so as to give them the meaning they have in common usage.
Appeal: A request for a review of the interpretation of any provision of this ordinance or a request for a variance.
Area of shallow flooding: A designated Zone AO, AH, AR/AO or AR/AH on a community's Flood Insurance Rate Map (FIRM) with a one percent or greater annual chance of flooding to an average depth of one to three feet where a clearly defined channel does not exist, where the path of flooding is unpredictable, and where velocity flow may be evident. Such flooding is characterized by ponding or sheet flow.
Area of special flood hazard: The land in the floodplain within a community subject to a 1 percent or greater chance of flooding in any given year. It is shown on the Flood Insurance Rate Map (FIRM) as Zone A, AO, AH, A1-30, AE, A99, AR. "Special flood hazard area" is synonymous in meaning and definition with the phrase "area of special flood hazard".
Base flood: The flood having a one percent chance of being equaled or exceeded in any given year.
Base flood elevation (BFE): The elevation to which floodwater is anticipated to rise during the base flood.
Basement: Any area of the building having its floor subgrade (below the ground level) on all sides.
Below-grade crawl space: An enclosed area below the base flood elevation in which the interior grade is not more than two feet below the lowest adjacent exterior grade and the height, measured from the interior grade of the crawlspace to the top of the crawlspace foundation, does not exceed 4 feet at any point.
Building: See "Structure."
Critical facility: A facility for which even a slight chance of flooding might be too great. Critical facilities include, but are not limited to schools, nursing homes, hospitals, police, fire and emergency response installations, wastewater treatment facilities, and installations which produce, use, or store hazardous materials or hazardous waste.
Development: Any man-made change to improved or unimproved real estate, including but not limited to buildings or other structures, mining dredging, filling, grading, paving, excavation, or drilling operations or storage of equipment or materials.
Elevated building: For insurance purposes, a nonbasement building which has its lowest elevated floor raised above ground by foundation walls, shear walls, posts, piers, pilings, or columns.
Flood or Flooding:
Floodplain or flood prone area: Any land area susceptible to being inundated by water from any source. See "Flood or flooding."
Floodplain administrator: The community official designated by title to administer and enforce the floodplain management regulations.
Floodplain management: The operation of an overall program of corrective and preventive measures for reducing flood damage, including but not limited to emergency preparedness plans, flood control works, and floodplain management regulations.
Floodplain management regulations: Zoning ordinances, subdivision regulations, building codes, health regulations, special purpose ordinances (such as floodplain ordinance, grading ordinance, and erosion control ordinance) and other application of police power. The term describes such state or local regulations, in any combination thereof, which provide standards for the purpose of flood damage prevention and reduction.
Flood elevation study: An examination, evaluation and determination of flood hazards and, if appropriate, corresponding water surface elevations, or an examination, evaluation and determination of mudslide (i.e., mudflow) and/or flood-related erosion hazards.
Flood Insurance Rate Map (FIRM): The official map of a community, on which the Federal Insurance Administrator has delineated both the special hazard areas and the risk premium zones applicable to the community. A FIRM that has been made available digitally is called a Digital Flood Insurance Rate Map (DFIRM).
Flood Insurance Study (FIS): See "Flood elevation study".
Flood proofing: Any combination of structural and nonstructural additions, changes, or adjustments to structures which reduce or eliminate risk of flood damage to real estate or improved real property, water and sanitary facilities, structures, and their contents.
Floodway: The channel of a river or other watercourse and the adjacent land areas that must be reserved in order to discharge the base flood without cumulatively increasing the water surface elevation more than a designated height. Also referred to as "Regulatory Floodway."
Functionally dependent use: A use which cannot preform its intended purpose unless it is located or carried out in close proximity to water. The term includes only docking facilities, port facilities that are necessary for the loading and unloading of cargo or passengers, and ship building and ship repair facilities, and does not include long term storage or related manufacturing facilities.
Hazardous material: The Oregon Department of Environmental Quality defines hazardous materials to include any of the following:
Highest adjacent grade: The highest natural elevation of the ground surface prior to construction next to the proposed walls of a structure.
Historic structure: Any structure that is:
Letter of Map Change (LOMC): Means an official FEMA determination, by letter, to amend or revise effective Flood Insurance Rate Maps and Flood Insurance Studies. The following are categories of LOMCs:
Lowest floor: The lowest floor of the lowest enclosed area (including basement). An unfinished or flood resistant enclosure, usable solely for parking of vehicles, building access or storage in an area other than a basement area is not considered a building’s lowest floor, provided that such enclosure is not built so as to render the structure in violation of the applicable non-elevation design requirements of this ordinance.
Manufactured dwelling: A structure, transportable in one or more sections, which is built on a permanent chassis and is designed for use with or without a permanent foundation when attached to the required utilities. The term "manufactured dwelling" does not include a "recreational vehicle" and is synonymous with “manufactured home”.
Manufactured dwelling park or subdivision: A parcel (or contiguous parcels) of land divided into two or more manufactured dwelling lots for rent or sale.
Mean sea level: For purposes of the National Flood Insurance Program, the National Geodetic Vertical Datum (NGVD) of 1929 or other datum, to which Base Flood Elevations shown on a community's Flood Insurance Rate Map are referenced.
New construction: For floodplain management purposes, “new construction” means structures for which the “start of construction” commenced on or after the effective date of a floodplain management regulation adopted by the City of John Day and includes any subsequent improvements to such structures.
Recreational vehicle: A vehicle which is
Regulatory floodway: See "floodway".
Sheet flow area: See "Area of shallow flooding".
Special flood hazard area: See “Area of special flood hazard” for this definition.
Start of construction: Includes substantial improvement and means the date the building permit was issued, provided the actual start of construction, repair, reconstruction, rehabilitation, addition, placement, or other improvement was within 180 days from the date of the permit. The actual start means either the first placement of permanent construction of a structure on a site, such as the pouring of slab or footings, the installation of piles, the construction of columns, or any work beyond the stage of excavation; or the placement of a manufactured home on a foundation. Permanent construction does not include land preparation, such as clearing, grading, and filling; nor does it include the installation of streets and/or walkways; nor does it include excavation for a basement, footings, piers, or foundations or the erection of temporary forms; nor does it include the installation on the property of accessory buildings, such as garages or sheds not occupied as dwelling units or not part of the main structure. For a substantial improvement, the actual start of construction means the first alteration of any wall, ceiling, floor, or other structural part of a building, whether or not that alteration affects the external dimensions of the building.
Structure: For floodplain management purposes, a walled and roofed building, including a gas or liquid storage tank, that is principally above ground, as well as a manufactured dwelling.
Substantial damage: Damage of any origin sustained by a structure whereby the cost of restoring the structure to its before-damaged condition would equal or exceed 50 percent of the market value of the structure before the damage occurred.
Substantial improvement: Any reconstruction, rehabilitation, addition, or other improvement of a structure, the cost of which equals or exceeds 50 percent of the market value of the structure before the "start of construction" of the improvement. This term includes structures which have incurred "substantial damage," regardless of the actual repair work performed. The term does not, however, include any project for improvement of a structure to correct existing violations of state or local health, sanitary, or safety code specifications which have been identified by the local code enforcement official and which are the minimum necessary to assure safe living conditions.
Variance: A grant of relief by the City of John Day from the terms of a flood plain management regulation.
Violation: The failure of a structure or other development to be fully compliant with the community's floodplain management regulations. A structure or other development without the elevation certificate, other certifications, or other evidence of compliance required in this ordinance is presumed to be in violation until such time as that documentation is provided.
Water dependent: A structure for commerce or industry which cannot exist in any other location and is dependent on the water by reason of intrinsic nature of its operations.
Water surface elevation: The height, in relation to the National Geodetic Vertical Datum (NGVD) of 1929, or other datum, of floods of various magnitudes and frequencies in the floodplains of coastal or riverine areas.
A. Lands to which this Ordinance Applies
This ordinance shall apply to all special flood hazard areas within the jurisdiction of the City of John Day, which includes both the incorporated city limits and the John Day Urban Growth Boundary.
B. Basis for Establishing the Special Flood Hazard Areas
The special flood hazard areas identified by the Federal Insurance Administrator in a scientific and engineering report entitled "The Flood Insurance Study (FIS) for the City of John Day", dated February 23, 1982, with accompanying Flood Insurance Rate Map (FIRM) panel numbers 410077001C and 4100770001 with Letter of Map Revision (LOMR) 19-10-0438P are hereby adopted by reference and declared to be a part of this ordinance. The FIS and FIRM panels are on file at the John Day City Hall.
C. Coordination with State of Oregon Specialty Codes
Pursuant to the requirement established in ORS 455 that the City of John Day administers and enforces the State of Oregon Specialty Codes, the City of John Day does hereby acknowledge that the Oregon Specialty Codes contain certain provisions that apply to the design and construction of buildings and structures located in special flood hazard areas. Therefore, this ordinance is intended to be administered and enforced in conjunction with the Oregon Specialty Codes.
D. Compliance and Penalties for Noncompliance
E. Abrogation and Severability
F. Interpretation
In the interpretation and application of this ordinance, all provisions shall be:
G. Warning and Disclaimer of Liability
The applicant shall be required to submit a Conditional Letter of Map Revision (CLOMR) when required under the following section. Ensure compliance with all applicable requirements in sections 5-2.9.040 (B.3.c) and 5-2.9.050 (A)
c. Requirement to Submit New Technical Data. A community's base flood elevations may increase or decrease resulting from physical changes affecting flooding conditions. As soon as practicable, but not later than six months after the date such information becomes available, a community shall notify the Federal Insurance Administrator of the changes by submitting technical or scientific data in accordance with Section 44 of the Code of Federal Regulations (CFR), Sub-Section 65.3. The community may require the applicant to submit such data ad review fees required for compliance with this section through the applicable FEMA Letter of Map Change (LOMC) process.
The Floodplain Administrator shall require a Conditional Letter of Map Revision prior to the issuance of a floodplain development permit for:
An applicant shall Notify FEMA within six (6) months of project completion when an applicant has obtained a Conditional Letter of Map Revision (CLOMR) from FEMA. This notification to FEMA shall be provided as a Letter of Map Revision (LOMR). The property owner shall be responsible for preparing all technical data to support the LOMR application and paying any processing or application fees associated with the LOMR, which shall be established by resolution of the city council. The Floodplain Administrator shall be under no obligation to sign the Community Acknowledgement Form, which is part of the CLOMR/LOMR application, until the applicant demonstrates that the project will or has met the requirements of this code and all applicable state and federal laws.
4. Substantial Improvement and Substantial Damage Assessments and Determinations. Conduct Substantial Improvement (SI) (as defined in section 5-2.9.020) reviews for all structural development proposal applications and maintain a record of SI calculations within permit files in accordance with section 5-2.9.040 (B.2). Conduct Substantial Damage (SD) (as defined in section 5-2.9.020) assessments when structures are damaged due to a natural hazard event or other causes. Make SD determinations whenever structures within the special flood hazard area (as established in section 5-2.9.030 (B)) are damaged to the extent that the cost of restoring the structure to its before damaged condition would equal or exceed 50 percent of the market value of the structure before the damage occurred.
C. Establishment of Development Permit
1. Floodplain Development Permit Required. A development permit shall be obtained before construction or development begins within any area horizontally within the special flood hazard area established in section 5-2.9.030 (B). The development permit shall be required for all structures, including manufactured dwellings, and for all other development, as defined in section 5-2.9.020, including fill and other development activities.
2. Application for Development Permit. Application for a development permit may be made on forms furnished by the Floodplain Administrator and may include, but not be limited to, plans in duplicate drawn to scale showing the nature, location, dimensions, and elevations of the area in question; existing or proposed structures, fill, storage of materials, drainage facilities, and the location of the foregoing. Specifically the following information is required:
D. Variance Procedure. The issuance of a variance is for floodplain management purposes only. Flood insurance premium rates are determined by federal statute according to actuarial risk and will not be modified by the granting of a variance.
Then an approved CLOMR may be required prior to approval of a floodplain permit.
b. If the requirements of section 5-2.9.050 (B.4-a) are satisfied, all new construction, substantial improvements, and other development shall comply with all other applicable flood hazard reduction provisions of 5-2.9.050
5. Standards for Shallow Flooding Areas
Shallow flooding areas appear on FIRMs as AO zones with depth designations or as AH zones with Base Flood Elevations. For AO zones the base flood depths range from one (1) to three (3) feet above ground where a clearly defined channel does not exist, or where the path of flooding is unpredictable and where velocity flow may be evident. Such flooding is usually characterized as sheet flow.
For both AO and AH zones, adequate drainage paths are required around structures on slopes to guide floodwaters around and away from proposed structures.
The Public Facilities (PF) overlay is intended to facilitate the delivery of municipal services. The PF overlay allows land uses and activities by right, consistent with plans and policies adopted by the John Day City Council.
The Public Facilities (PF) overlay is automatically applied to property owned by the City of John Day, including property acquired by the City after the effective date of this ordinance. The PF overlay automatically expires upon City disposal of said property. The requirements and standards of this Chapter shall apply, in addition to those herein specified for the underlying zone; provided, that if a conflict in regulations or standards occurs, the provisions of the PF overlay apply.
In a PF overlay zone, the following uses and their accessory uses are permitted outright:
In a PF overlay zone, the following uses and their accessory uses are permitted when authorized in accordance with Chapter 5-4.4 of this Title:
In a PF overlay zone, the following dimensional standards shall apply:
In a PR overlay zone, the following setback requirements shall apply:
In addition to the standards and conditions of the underlying zone, and those that may be attached to the approval of a conditional use as provided by Chapter 5-4.4 of this Title, the following limitations shall apply to uses in a PF overlay zone:
The Innovation Gateway (IG) Overlay applies to the area planned and evaluated as part of the John Day Innovation Gateway Plan and as designated on the Zoning Map. In any zone which is a GW overlay zone, the requirements and standards of this Chapter shall apply in addition to those of the underlying zone; provided, that if a conflict in regulations or standards occurs, the provisions of this chapter shall govern. The purpose of the IG overlay zone is to implement the recommendations of the Innovation Gateway Plan, including to create welcoming, attractive, active area on both sides of the John Day River; support establishment of a system of integrated parks and trails within and adjacent to the area; allow for an appropriate mix of commercial, industrial and institutional uses; support the City's goals associated with water reclamation and re-use; and promote use of a variety of modes of transportation to travel to, from and within the area.
The IG zone includes three sub-districts, the Northeast, Northwest and South sub-districts as depicted in Figure 5-2.11-1. Use permitted outright or as conditional uses vary within the sub-districts as described in sections 5-2.11.030 and 5-2.11.040 of this chapter.
Figure 5-2.11.1. Sub-District

Permitted uses are those allowed outright in the underlying base zones, with the exceptions summarized in Table 5-2.11.030
| Use | South Sub-District | Northwest Sub-District | Northeast Sub-District |
| Residential Uses | |||
| - New dwelling built in conjunction with a permitted commercial or industrial use | P | N | N |
| - All other residential uses | - | - | - |
| Commercial Categories | |||
| Drive-up/Drive-in/Drive-through | N | N | N |
| Hotels and Motels | P | N | N |
| Quick Vehicle Servicing of Vehicle Repair | N | S | S |
| Retail Sales and Commercial Uses1 | Y | S | S |
| Self-Service Storage2 | - | S | N |
| Industrial Categories | |||
| Industrial Service | |||
| - Fully enclosed | N | - | - |
| - Not enclosed | N | N | N |
| Manufacturing and Production | |||
| - Fully enclosed3 | S | - | - |
| - Not enclosed | N | - | - |
| Warehouse and Freight Movement | N | - | - |
| Waste Related | - | N | N |
| Wholesale Sales | |||
| - Fully enclosed, less than 20,000 square feet of floor area | N | - | - |
| - Fully enclosed, equal to or greater than 20,000 square feet of floor area | N | N | N |
| - Not enclosed | N | N | N |
| Institutional Categories | |||
| Basic Utilities | - | - | - |
| Community Service, except as otherwise allowed by Public Facilities Overlay zone | - | - | - |
| Daycare | - | - | - |
Parks and Open Space | |||
- Consistent with the John Day Innovation Gateway Area Plan | P | P | P |
- Other parks and open space uses | CU | CU | CU |
Religious institutions/churches | - | - | - |
Schools | - | - | - |
Other Categories | |||
Accessory Structures (with a permitted use) | - | - | - |
Agriculture- Greenhouses and similar horticulture | P | P | P |
Buildings and Structures Exceeding the Height Limits in Table 5-2.3.030 | - | - | - |
Radio Frequency Transmission Facilities, including building-mounted facilities, that project above roofline | - | - | - |
Utility Corridors | - | - | - |
Temporary Uses (limited to "P" and "CU" uses), per Section 5-4.9.010. | - | - | - |
Transportation Facilities (operation, maintenance, preservation, and construction in accordance with the City's Transportation System Plan) | - | - | - |
Notes:
P= Permitted; CU= Permitted as a conditional use; S= Permitted with standards; N= Not permitted; - = Refer to base zone for use status
1. Uses subject to size limitations in the northeast and northwest sub-districts subject to section 5-2.11.050 of this code
2. Self-storage uses must be within a fully enclosed building; access to individual storage units shall be provided from the interior of the building only.
3. Manufacturing and production allowed in the Southern Subdistrict only if the use includes a retail compunent.
[Placeholder for possible additional standards.]
Development standards are summarized in Table 5-2.11.050.
| Use | South Sub-District | Northwest Sub-District | Northeast Sub-District |
| Minimum Lot Area | |||
| - New dwelling built in conjunction with a permitted commercial or industrial use located above the ground floor | None | - | - |
| Minimum Lot Width | 20 ft | - | - |
| Minimum Lot Depth | None | - | - |
Maximum Building/Structure Height Ornamental and symbolic features not exceeding 200 square feet in gross floor or 15% of the total building footprint, whichever is less, and including towers, spires, cupolas, belfries, and domes, where such features are not used for human occupancy, may exceed the height limit by no more than 10 ft. | 35 ft | - | - |
| Maximum Building Size, Retail Comercial Uses | - | 5,000 sq ft | 5,000 sq ft |
Lot Coverage, Maximum Building Coverage (Foundation plane as % of site area) | 85% | 85% | 85% |
| Landscape Area (% site area). Landscape area may include a combination of plant beds, planters, and plaza space. | 15% | 15% | 15% |
| Minimum Setbacks1 | |||
| - Front, Street, Side, and Rear Property lines, except garage or carport | - | - | - |
| - Garage/Carport Entry, setback from street or vehicle accessway | - | NA | NA |
| - Alley | - | NA | NA |
| Build-to-Line1 | 20 ft | - | - |
Notes:
- = Same as indicated in base zone
1. Build-to line is measured from the edge of any adjacent public or private path or roadway providing primary access to the front of the proposed use.
Building Orientation and Commercial Block Layout
A. Purpose. The purpose of these standards is to promote pedestrian-oriented development where walking is encouraged, and to avoid conflicts between pedestrians and vehicles. Providing direct pedestrian connections between buildings and adjacent streets and pathways also encourages crime prevention, natural surveillance or security, and safety by having more "eyes-on-the-street."
B. Applicability. This section applies to projects that are subject to Site Design Review.
C. Site layout and design standards for the Northwest and Northeast Sub-districts are as described for the General Industrial base zone in section 5-2.4.060 of this code.
D. Building Orientation and Commercial Block Layout standards described in section 5-2.3.060 do not apply to the South Sub-District. Instead, the following standards are applicable to projects that are subject to Site Design Review in the South Sub-District.
2 LAND USE DISTRICTS
Every parcel, lot, and tract of land within the City of John Day is designated with a land use (zoning) district. The use of land is limited to the uses allowed by the applicable land use district and/or overlay zone. The applicable land use districts and overlay zone(s) are determined based on the Land Use District Map and the provisions of this Chapter, which shall be consistent with the City of John Day Comprehensive Plan, as indicated in Table 5-2.1.010.
Table 5-2.1.010
| Comprehensive Plan Designation | Applicable Land Use District |
| Residential Limited | RL |
| Residential General | RG |
| Residential Limited or Residential General | Residential Commercial (RC) allowed with rezoning |
| Downtown | Downtown |
| General Commercial | General Commercial |
| General Industrial | GI |
| Light Industrial | LI |
| Airport (Ogilvie Field) | Airport Industrial Park (AIP) |
| Overlay/Combining Zones | |
| Airport Approach | Airport Safety & Compatibility Overlay (AASC) |
| Geological Hazard | GH |
| Park Reserve | PR |
| Greenway | GW |
| Floodplain | FP |
| Public Facilities | PF |
Where due to the scale, lack of scale, lack of detail or illegibility of the City zoning map, or due to any other reason, there is uncertainty, contradiction or conflict as to the intended location of a district boundary line, the boundary line shall be determined by the Planning Official in accordance with all of the following criteria:
The Residential Districts are intended to promote the livability, stability and improvement of the City’s neighborhoods. Three districts are provided: 1) The Residential Limited (RL) district is intended to accommodate a wide variety of housing types, including attached and detached housing on small to medium size lots in the neighborhoods close to downtown. The RL district also supports parks, schools, places of worship, and other services at an appropriate neighborhood scale; 2) The Residential General (RG) district is intended to accommodate household living at somewhat lower densities than the RL district because it applies to the hillsides of John Day; and 3) The Residential-Commercial (RC) district is intended to encourage business formation, housing options, and transportation efficiency by combining a variety of housing, like that allowed in the RL district, with public and commercial services at an appropriate neighborhood scale. This chapter provides standards for land use and development in each of the three districts, based on the following principles:
Table 5-2.2.020 identifies the land uses that are allowed in the Residential Districts. The specific land use categories are described and uses are defined in Chapter 5-1.3.
| Table 5-2.2.020 Land Uses Allowed in Residential Districts (RL, RG, RC) | ||||
| Uses | Status of Use in District | |||
| Use Categories (Examples of uses are in Chapter 5-1.3; definitions are in Chapter 5-6.1) | Residential Limited (RL) | Residential General (RG) | Residential Commercial (RC) | [Reserve] |
| Residential Categories | ||||
| Household Living | ||||
| Single Family (not attached) | P | P | P | |
| Accessory Dwelling, per Section 5-2.2.100A. | S | S | S | |
| Duplex (2 dwellings sharing a common wall on one lot) | ||||
| - One duplex on a corner lot | P | P | P | |
| - One duplex on an interior lot | P | P | P | |
| - More than one duplex (4+ units), per Section 5-2.2.100B | S | S | S | |
| Single Family Attached (2 or more common-wall single family dwellings), each on its own lot, per Section 5-2.2.100B | S | S | S | |
| Cottage Cluster (2-4 single family dwellings on one lot, accessed via an alley and oriented to a common green of at least 200 sq ft per unit, and each unit containing not more than 1,000 square feet of floor area) | P | P | P | |
| Manufactured Home, per Section 5-2.2.100E | S | S | S | |
| Manufactured Home Park, per Section 5-2.2.100F. | CU | S | CU | |
| Zero Lot Line Housing (not common wall), per Section 5-2.2.100J | S | S | S | |
| Multifamily (3 or more dwellings on lot), except as provided for Cottage Housing; includes Senior Housing, Assisted Living, and Single Room Occupancy Uses, but not Group Living), per Section 2.2.100G | S | S | S | |
| Group Living | ||||
| Group Care Home, per Section 5-2.2.100C | S | S | S | |
| Group Care Facility, per Section 5-2.2.100C | N | S | S | |
| Commercial Categories | ||||
| Drive-Up/Drive-In/Drive-Through (drive-up windows, kiosks, ATM’s, similar uses/facilities), per Section 5-2.3.100A | N | N | N | |
| Educational Services, not a school (e.g., tutoring or similar services), floor area limited to 2,000 square feet per use | N | N | P | |
| Entertainment, Major Event | N | N | N | |
| Home Occupation, per the standards in Section 5-2.2.100D and the procedures in Section 5-4.9.020. | S | S | S | |
| Office, floor area (limited to 2,000 square feet floor area per use) | N | N | P | |
| Outdoor Recreation, Commercial | N | N | N | |
| Quick Vehicle Servicing or Vehicle Repair | N | N | N | |
| Retail Sales and Commercial Services (limited to 2,000 square feet floor area per use) | N | N | P | |
| Self-Service Storage | N | N | N | |
| Short-Term Vacation Rental, per Section 5-2.2.100H | S | S | S | |
| Industrial Categories | ||||
| Industrial Service, enclosed in primary building | N | N | CU | |
| Manufacturing and Production, enclosed in primary building | N | N | CU | |
| Warehouse and Freight Movement | N | N | N | |
| Waste-Related | N | N | N | |
| Wholesale Sales | N | N | N | |
| Institutional Categories | ||||
| Basic Utilities | P | P | P | |
| Community Service, no drive-up uses | ||||
| - limited to 2,000 square feet floor area | CU | CU | P | |
| - exceeds 2,000 square feet floor area | N | N | CU | |
| Daycare | ||||
| Family Daycare (16 or fewer children) as allowed under ORS 657A.250 and ORS 657A.440(4), subject to State licensing | P | P | P | |
| Daycare Center subject to State licensing | CU | CU | P | |
| Adult daycare, subject to State licensing | P | P | P | |
| Parks and Open Space | CU | CU | CU | |
| Parks and Open Space, when designated on an adopted Specific Area Plan, or when part of a subdivision application (Chapter 5-4.3) or master planned development application (Chapter 5-4.5) | P | P | P | |
| Religious Institutions and Houses of Worship | CU | CU | CU | |
| Schools | CU | CU | CU | |
| Other Categories | ||||
| Accessory Structures (with a permitted use) | ||||
| - no taller than 14 ft. and no larger than 1,000 square feet of building footprint | P | P | P | |
| - taller than 14 ft. or larger than 1,000 square feet of building footprint | CU | CU | CU | |
| Agriculture – Animals | ||||
| - Livestock, limited to 1 head of cattle, horse, sheep, or similar size animal per ½ acre undeveloped pasture. Swine: 1 per ½ acre | P | P | N | |
| Small Animals (e.g., chickens, chukar, rabbits), excluding roosters and swine: limited to 5 of each type of animal. (Amended by Ord. 12-151-01, January 12, 2012) | P | P | P | |
| Agriculture – Nurseries and similar horticulture (indoor or outdoor) | N | N | CU | |
| Mining | N | N | N | |
| Radio Frequency Transmission Facilities | CU | CU | CU | |
| Utility Corridors, Regional | ||||
| Regional utility corridors extending through the City and existing prior to November 24, 2005 are permitted. All other regional utility corridors require a conditional use permit. | CU | CU | CU | |
| Temporary Uses (limited to “P” and “CU” uses), per Section 5-4.9.010. | P/CU | P/CU | P/CU | |
| Transportation Facilities (operation, maintenance, preservation, and construction in accordance with the City’s Transportation System Plan) | P | P | P | |
Key:
P = Permitted, subject to site/development review
S = Permitted with standards (Section 5-2.2.100)
CU = Conditional Use permit required (Chapter 5-4.4)
N = Not permitted
The development standards in Table 5-2.2.030 apply to all uses, structures, buildings, and development, and major remodels, in the Residential Districts.
| Table 5-2.2.030 – Development Standards for Residential Districts (except as modified by 5-4.4 Master Planned Development) | ||||
| Standard | RL | RG | RC | [Reserve] |
| Minimum Lot Area* (square feet) | ||||
| Single Family, not attached | 5,000 sf | 10,000 sf | 5,000 sf | |
| Single Family, attached | 4,000 sf | 6,000 sf | 3,000 sf | |
| Single Family with Secondary DU | 7,500 sf | 10,000 sf | 6,000 sf | |
| Duplex | 7,500 sf | 12,000 sf | 7,500 sf | |
| Multiple-Family or Cottage Cluster | 10,000 sf | 12,000 sf | 10,000 sf | |
| Non-Residential Uses | 10,000 sf | 10,000 sf | 10,000 sf | |
| Lot Size on Slopes >20%, except as modified through a Master Planned Development | 10,000 sf | 10,000 sf | 10,000 sf | |
| *Average lot size in land divisions may be reduced through lot size averaging. See related procedures in Chapter 5-4.3.020. Minimum lot sizes do not apply to open space tracts. | ||||
| Minimum Lot Width | ||||
| Single Family, not attached | 40 ft | 40 ft | 40 ft | - |
| Single Family, attached | 20 ft | 20 ft | 20 ft | - |
| Duplex | 50 ft | 50 ft | 50 ft | - |
| Multiple-Family or Cottage Cluster | 50 ft | 50 ft | 50 ft | - |
| Non-Residential Uses | 20 ft | 20 ft | 20 ft | - |
| For flag lots, width is measured at the front building line. | ||||
| Minimum Lot Depth | 2 times min. width | 2 times min. width | 2 times min. width | |
| *Lot area must conform to the standards above. Lot dimensions may be reduced for Flag Lots, Section 5-4.3.040. | ||||
| Building/Structure Height (See also, Sections 5-2.2.040 Setback Yards; 5-2.2.050, Infill Standards; 5-2.2.080, RL Height Step-Down; 5-3.1.020, Clear Vision, and 5-3.2.050, Fences and Walls.) | ||||
| Level Site (slope less than 15%), maximum height | 35 ft 45 ft with CUP | 35 ft 45 ft with CUP | 35 ft 45 ft with CUP | |
| Sloping Site (15% or greater), maximum height | level site +5 | level site +5 | level site +5 | |
| Building Height Transition Required Adjacent to RL District, per Section 5-2.2.080 | No | Yes | Yes | |
| Fences, Retaining/Garden Walls See requirements in Section 5-3.2.050 | ||||
| Lot Coverage (two options)
1. Maximum Building Coverage (Foundation plane as % of lot area) | ||||
| Single-Family Dwelling | 50% | 40% | 50% | |
| Single Family – Common Wall | 70% | 60% | 70% | |
| Duplex | 60% | 60% | 60% | |
| Multifamily or Cottage Cluster | 60% | 60% | 60% | |
| Mixed-Use/Live-Work/Commercial | NA | NA | 70% | |
| Civic/Institutional/Open Space | 60% | 60% | 60% | |
| 2. Coverage Bonus | The allowable building coverage increases by a ratio of one-half (1/2) square foot for every one (1) square foot of required parking area that is paved using a City-approved porous/permeable paving material (i.e., allowing stormwater infiltration) or one-half (1/2) square foot for every one (1) square foot of City-approved water quality treatment area (e.g., vegetative swale or biofiltration) on the development site. | |||
| Min. Landscape Area (% site area), except does not apply to Single Family Dwellings. Landscape area may include plant areas and some non-plant areas as allowed under Section 5-3.2.030.D. | 7% | 10% | 7% | |
| Minimum Setbacks (feet): (See also, Sections 5-2.2.040 Setback Yards; 5-2.2.050, Infill Standards; 5-2.2.080, RL Height Step-Down; 5-3.1.020, Clear Vision, and 5-3.2.050, Fences and Walls.) | ||||
| Front/Street Setback (includes corner yards abutting street) | ||||
| Standard Minimum Setback | 15 ft | 15 ft | 10 ft | |
| Garages and Carport Entries (minimum distance from garage/carport opening to sidewalk or right-of-way, whichever is closest) | 20 ft | 20 ft | 20 ft | |
| Open Structures (e.g., porch, balcony, portico, patio, wall), where structure is less than 50% enclosed on side elevations and does not encroach into utility easement | 5 ft | 5 ft | 5 ft | |
| Note: Other standards may preclude building at a minimum setback. Avoid utilities and easements. See also, special setbacks for planned street improvements. | ||||
| Side Setback, except alleys and corner lots (total of 2 sides, 3 ft minimum) | ||||
| Structure >28’ height | 10 ft total | 15 ft total | 10 ft total | |
| Structure 16’-28’ height | 10 ft total | 12 ft total | 10 ft total | |
| Structure </=16’ height | 10 ft total | 10 ft total | 10 ft total | |
| Garage/Carport Entry, except alley | 20 ft | 20 ft | 20 ft | |
| Exceptions* | ||||
| Alley | 3 ft | 3 ft | 3 ft | |
| Open Structures (e.g., porch, balcony, portico, patio wall), where structure is less than 50% enclosed on side elevations | 5 ft min. on side with open structure | 5 ft min. on side with open structure | 5 ft min. on side with open structure | |
| Common Walls/Zero Lot Line | 10 ft one side | 10 ft one side | 10 ft one side | |
| *Sight distances shall be maintained along arterial and collector streets, per City standards. The City may defer to guidelines from the American Association of State Highway Officials (AASHTO). | ||||
| Rear Setback | ||||
| Standard Setback, except as approved for Common Walls | 10 ft | 15 ft | 10 ft | |
| Alley Setbacks | 3 ft | 3 ft | 3 ft | |
| Build-To Line (feet): | ||||
| New Buildings Only: At least one primary building entrance shall be built no farther from the street right-of-way than the build-to line (See also, Section 5-2.3.090) | Not applicable | Not applicable | 20 ft | |
| Special Setback for Planned Street Improvements | The City may require a minimum setback of up to 40 feet, measured from the street centerline to any structure, when a structure would abut a street containing less than the standard right-of-way for the subject street classification. Street classification and required right-of-way are as indicated by the City of John Day Transportation System Plan. | |||
The purpose of Section 5-2.2.050 is to ensure compatibility of new development and redevelopment to existing residences and to provide flexibility in code standards. The setback standard in Section 5-2.2.050 supplements the standards in Table 5-2.2.030 when a building or building addition is proposed on a lot in a Residential District that was platted prior to November 24, 2005. The approval body shall use the criteria and standards in subsections A and B, below, in determining applicable setbacks and building heights.
Allowable housing densities are calculated by dividing the total parcel or lot area by the applicable lot size standard after subtracting street rights-of-way. Areas reserved for flag lot access (flag poles) are not counted for the purpose of calculating minimum lot sizes.
Building heights shall conform to the standards in Table 5-2.2.030, and subsections A-C, below:
Section 5-2.2.100 provides standards for specific land uses and building types, as identified in Table 5-2.2.020 that control the scale and compatibility of those uses within Residential Districts. The standards in Section 5-2.2.100 supplement (are in addition to and do not replace) the standards in Sections 5-2.2.010 through 5-2.2.090. This Section applies to the following uses and building types:
A. Accessory Dwelling
B. Attached Single Family (Townhouses or Rowhouses) and Attached Duplexes
D. Group Living (Residential Care Homes and Residential Care Facilities)
E. Home Occupations
F. Manufactured Homes
G. Manufactured/Mobile Home Parks
H. Multiple Family Housing
I. Short-Term Vacation Rentals
J. Zero-Lot Line Housing (not common wall)
K. Temporary Medical Hardship Dwellings
L. Manufactured Homes and RVs as Temporary Dwellings
This Chapter provides two commercial districts to accommodate the range of commercial land uses in the community. The Downtown District is focused on the core commercial and civic (i.e., the central business) area of the community. The General Commercial District regulations apply to those commercial areas outside or adjacent to the central business area. Both districts are intended to:
Table 5-2.3.020 identifies the land uses that are allowed in the Commercial Districts. The specific land use categories are described and uses are defined in Chapter 5-1.3.
| Table 5-2.3.020 – Land Uses Allowed in Commercial Districts (D, GC) | |||
| Uses | Status of Use in District | ||
| Use Categories (Examples of uses are in Chapter 5-1.4; definitions are in Chapter 5-6.1.) | Downtown (D) | General Commercial (GC) | [Reserve] |
| Residential Categories | |||
| Household Living | |||
| All Residential Uses and Structures (Household Living and Group Living) allowed, if: | |||
| - lawfully existing as of November 24, 2005* | P | P | |
| - a dwelling that does not occupy ground floor space fronting Main Street* | P | P | |
| *In the event of involuntary damage or destruction due to fire or other event beyond the owner’s control, a residential use lawfully existing in the Downtown as of November 24, 2005 may be rebuilt and reestablished pursuant with Section 5-5.2.020 through 5-5.2.030. A dwelling unit that existed prior to November 24, 2005 but was not used as a residence on that date may convert back to residential use, but may not be expanded upon. This provision does not apply to a dwelling unit that occupies ground floor space fronting Main Street. (Amended by Ord. #19-179-03, [11-12-2019]) Group Living Uses shall conform to the provisions in Section 5-2.2.100. | |||
| Commercial Categories | |||
| Drive-Up/Drive-In/Drive-Through (drive-up windows, kiosks, ATM’s, similar uses/facilities), per Section 5-2.3.100A | CU+S | CU+S | |
| Short-Term Vacation Rental per Section 5-2.2.100H | S | S | |
| Educational Services, not a school (e.g., tutoring or similar services) | P | P | |
| Entertainment, Major Event | CU | CU | |
| Offices | P | P | |
| Outdoor Recreation, Commercial | CU | CU | |
| Parking Lot (when not an accessory use) | CU | CU | |
| Quick Vehicle Servicing or Vehicle Repair. (See also Drive-Up/Drive-In/Drive-Through Uses, per Section 5-2.3.100A) | |||
| - fully enclosed (e.g., garage) | CU | P | |
| - not enclosed, except accessory uses | N | CU | |
| Retail Sales and Commercial Services (See also Drive-Up Uses, per Section 5-2.3.100A) | P | P | |
| -Marijuana Retailer per Section | CU/S | CU/S | |
| -Medical Marijuana Dispensary | CU/S | CU/S | |
| Self-Service Storage | N | CU | |
| Industrial Categories | |||
| Industrial Service (See also Drive-Up Uses) | |||
| - fully enclosed (e.g., office) | P | P | |
| - not enclosed | N | CU | |
| Marijuana Testing Laboratory | CU/S | CU/S | |
| Manufacturing and Production | |||
| - fully enclosed | P | P | |
| - not enclosed | N | CU | |
| -Marijuana Production Facility | N | CU/S | |
| -Marijuana Processing Facility | N | CU/S | |
| Warehouse and Freight Movement | N | CU | |
| Waste-Related | N | N | |
| Wholesale Sales | |||
| - fully enclosed, less than 20,000 square feet of floor area | CU | P | |
| - fully enclosed, equal to or greater than 20,000 square feet of floor area | N | CU | |
| - not enclosed | N | CU | |
| -Marijuana Wholesaler | CU/S | CU/S | |
| Institutional Categories | |||
| Basic Utilities | P | P | |
| Community Service | P | P | |
| Daycare | |||
| Family Daycare (16 or fewer children) as allowed under ORS 657A.250 and ORS 657A.440(4), subject to State licensing | P | P | |
| Daycare Center subject to State licensing | CU | CU | |
| Adult daycare, subject to State licensing | P | P | |
| Parks and Open Space, consistent with a downtown plan or in conjunction with a business (e.g., plaza, pocket park, etc.) | P | P | |
| Other Parks and Open Space uses | CU | CU | |
| Religious Institutions and Houses of Worship | |||
| - lawfully existing as of November 24, 2005 | P | P | |
| - new | CU | CU | |
| Schools | |||
| - lawfully existing as of November 24, 2005 | P | P | |
| - new | CU | CU | |
| Other Categories | |||
| Accessory Structures (with a permitted use) | P | P | |
| Buildings and Structures Exceeding the Height Limits in Table 5-2.3.030 | CU | CU | |
| Radio Frequency Transmission Facilities, including building-mounted facilities, that project above roofline | CU | CU | |
| Utility Corridors | CU | CU | |
| Temporary Uses (limited to “P” and “CU” uses), per Section 5-4.9.010. | P/CU | P/CU | |
| Transportation Facilities (operation, maintenance, preservation, and construction in accordance with the City’s Transportation System Plan) | P | P | |
Key:
P = Permitted, subject to site/development review
S = Permitted with standards (See cross-reference)
CU = Conditional Use permit required (Chapter 5-4.4)
N = Not permitted
CU/S = Conditional use with standards (Section 5-2.4.070)
The development standards in Table 5-2.3.030 apply to all new structures, buildings, and development, and major remodels, in the Commercial Districts.
| Table 5-2.3.030 – Development Standards for Commercial Districts | |||
| Standard | D | GC | [Reserve] |
| Minimum Lot Area* (square feet) | 2,000 sf | 2,000 sf | |
| *Development must conform to lot width, depth, yard setback and coverage standards. | |||
| Minimum Lot Width | |||
| Single Family, not attached | 40 ft | 40 ft | |
| Single Family, attached | 20 ft | 20 ft | |
| Duplex | 50 ft | 50 ft | |
| Multiple-Family | 50 ft | 50 ft | |
| Non-Residential Uses | 20 ft | 20 ft | |
| For flag lots, width is measured at the front building line. | |||
| Minimum Lot Depth | 2 times min. width | 2 times min. width | |
| Building/Structure Height | |||
| Height may be increased with Conditional Use Permit, per Chapter 5-4.4. Height transition required adjacent to RL District, per Section 5-2.2.080. | 60 ft | 45 ft | |
| Fences, Retaining/Garden Walls: See Section 5-3.2.050 | |||
| Lot Coverage, maximum building coverage (Foundation plane as % of site area) | 95% | 90% | |
| Landscape Area (% site area), except does not apply to single family dwellings. Landscape area may include a combination of plant beds, planters, and plaza space | 5% | 10% | |
| Minimum Setbacks (feet): (See also, Section 5-2.2.080, RL Height Step-Down.) | |||
| Front, Street, Side, and Rear property lines, except garage or carport | 0 ft | 0 ft | |
| Garage/Carport Entry, setback from street | 20 ft | 20 ft | |
| Alley | 3 ft | 3 ft | |
| Adjacent to RL District | 10 ft, and per Section 5-2.2.080 | 10 ft, and per Section 5-2.2.080 | |
| Build-To Line (feet): | |||
| New Buildings Only: At least one primary building entrance shall be built no farther from the street right-of-way than the build-to line; except where a greater setback is required for a Planned Street Improvement, then the build-to line increases proportionately. The build-to line may also be increased through Site Design Review when pedestrian amenities are provided between a primary building entrance and the street right-of-way. (See also, Section 5-2.3.090.) | 0 ft; may be increased when pedestrian amenities are provided between a primary building entrance and street | 60 ft; may be increased when a shopping street connects the primary building entrance(s) to the street, per Section 5-2.3.060.D | |
| Special Setback for Planned Street Improvements | The City may require a minimum setback of up to 40 feet, measured from the street centerline to any structure, when a structure would abut a street containing less than the standard right-of-way for the subject street classification. Street classification and required right-of-way are as indicated by the City of John Day Transportation System Plan. | ||
Lot coverage and impervious surfaces are calculated as provided under Section 5-2.2.070.
This section supplements the standards contained in Sections 5-2.3.020 through 5-2.3.090. It provides standards for the following land uses to control the scale and compatibility of those uses:
Drive-up and Drive-through Uses and Facilities
Marijuana Businesses
Chapter 5-2.4 accommodates a range of industrial and commercial land uses in three Industrial Districts, Light Industrial (LI), General Industrial (GI), and Airport Industrial Park (AIP). The districts are intended to provide for land use compatibility while providing a high-quality environment for businesses and employees. The AIP district is also intended to provide for compatible land use adjacent to Ogilvie Field, and provide for economic development consistent with Oregon’s Certified Industrial Lands program. The GI district is intended to provide suitable locations for heavy industrial uses (e.g., raw materials processing; and manufacturing, assembly, packaging or distribution of heavy or large goods) that would not otherwise be compatible in other districts. Chapter 5-2.4 guides the orderly development of industrial areas based on the following objectives:
Table 5-2.4.020 identifies the land uses that are allowed in the Industrial Districts. The specific land use categories are described and uses are defined in Chapter 5-1.3.
| Table 5-2.4.020 – Land Uses Allowed in Industrial Districts | |||
| Uses | Status of Use in District | ||
| Use Categories (Examples of uses are in Chapter 5-1.3; definitions are in Chapter 5-6.1.) | General Industrial (GI) | Light Industrial (LI) | Airport Industrial Park (AIP |
| Residential Categories | |||
| Household Living | |||
| Residential Uses (Household Living and Group Living) allowed, if: | |||
| - Lawfully existing as of November 24, 2005 | P | P | N |
| - New dwelling built in conjunction with a permitted commercial or industrial use | N | P | CU/S |
| - Manufactured dwelling on an individual lot, subject to Section 5-2.2.100F. | N | N | N |
| - Manufactured dwelling park | N | N | N |
| Group Living Uses, if allowed above, shall conform to the provisions in Section 5-2.2.100D. | |||
| Commercial Categories | |||
| Drive-Up/Drive-In/Drive-Through (drive-up windows, kiosks, ATM’s, similar uses/facilities), per Section 5-2.3.100A for uses in LI District | P | S | N except “P” when accessory to a industrial use |
| Short-Term Vacation Rental | N | N | N |
| Educational Services, not a school (e.g., tutoring or similar services) | N | CU | CU |
| Entertainment, Major Event | N | CU | CU |
| Offices | P | P | P |
| Outdoor Recreation, Commercial | N | CU | CU |
| Parking Lot (when not an accessory use) | CU | CU | CU |
| Quick Vehicle Servicing or Vehicle Repair (See also Drive-Up Uses, Section 5.2.3.100A) | P | S | CU |
| Retail Sales and Commercial Service, | |||
| - less than 10,000 square feet floor area | CU | P | CU |
| - greater than 10,000 square feet floor area, per Section 5-2.4.050 | N | N | CU |
| Self-Service Storage | P | CU | P |
| Industrial Categories | |||
| Industrial Service (See also Drive-Up Uses) | |||
| - fully enclosed (e.g., office) | P | P | P |
| - not enclosed | P | CU | P |
| Marijuana Testing Laboratory per Section 5-2.4.070 per Section 5-2.4.070, if applicable per Section 5-2.4.070 | S | S | S |
| Manufacturing and Production | |||
| - fully enclosed | P | P | P |
| - not enclosed | P | CU | P |
| -Agricultural Processing | S | S | S |
| -Marijuana Processing Facility | CU/S | CU/S | CU/S |
| -Marijuana Production Facility | CU/S | CU/S | CU/S |
| -Industrial Hemp Production | S | S | S |
| Warehouse and Freight Movement | P | CU | P |
| Waste-Related | CU | N | N |
| Wholesale Sales, per Section 5-2.4.070 per Section 5-2.4.050 | |||
| - fully enclosed | P | P | N except “P” when accessory to a industrial use |
| - not enclosed | P | CU | |
| -Marijuana Wholesaler | S | S | S |
| Institutional Categories | |||
| Basic Utilities | P | P | N except “P” for utilities required to serve AIP district |
| Community Service, except as otherwise allowed by Public Facilities Overlay zone | N except “P” for public safety facilities | N except “P” for public safety facilities | N except “P” for public facilities |
| Daycare | N | N | N |
| Parks and Open Space, except open space areas are permitted by right when accessory to a primary permitted use | CU | CU | CU |
| Religious Institutions and Houses of Worship | N | CU | N |
| Schools, except education uses are permitted by right when accessory to a primary permitted use (e.g., flight instruction at airport, or vocational instruction in conjunction with industrial use) | N | CU | N |
| Other Categories | |||
| Accessory Structures (with a permitted use) | P | P | P |
| Agriculture – Animals, when | |||
| - existing use as of November 24, 2005 | P | P | Not applicable |
| - accessory to a permitted industrial use | P | N | P |
| - new use | N | N | N |
Agriculture – Nurseries and similar horticulture (See also, Wholesale and Retail Uses) per Section 5-2.4.070, when applicable | S | S | S |
| Buildings and Structures Exceeding the Height Limits in Section 5-2.4.060 | CU | CU | N Except as required per Ogilvie Field Airport Master Plan |
| Mining | CU | N | N |
| Radio Frequency Transmission Facilities | |||
| - within height limit of district | P | P | N except “P” in conjunction with airport operations |
| - exceeds height limit (free-standing or building-mounted facilities) | CU | CU | |
| Rail Lines and Utility Corridors, except those existing prior to November 24, 2005 are allowed. | CU | CU | P |
| Temporary Uses (limited to “P” and “CU” uses), per Section 5-4.9.010. | P/CU | P/CU | P/CU |
| Transportation Facilities (operation, maintenance, preservation, and construction in accordance with the City’s Transportation System Plan) | P | P | P |
Key:
P = Permitted, subject to site/development review
S = Permitted with standards (See cross-reference)
CU = Conditional Use permit required (Chapter 5-4.4)
N = Not permitted
CU/S = Conditional use with standards (5-2.4.070)
Industrial uses and developments shall be oriented on the site to accommodate multiple modes of transportation (pedestrians, vehicles, bicycles), to minimize adverse impacts (e.g., noise, glare, smoke, dust, exhaust, vibration, etc.) on adjacent uses, and to provide compatibility with adjacent uses to the extent practicable. The following standards shall apply to all development in the General Industrial and Light Industrial Districts:
The maximum allowable height of buildings and structures in the GI, LI, and AIP districts is 35 feet, except that taller buildings and structures are allowed when approved as part of a Conditional Use Permit, provided they conform to the RL height step-down standards in Section 5-2.2.080.C.
Section 5-2.4.070 supplements the standards contained in Sections 5-2.4.020 through 5-2.4.060. It provides standards for the following land uses to control the scale and compatibility of those uses:
The purpose of the AASC overlay zone is to encourage and support the continued operation and vitality of Ogilvie Field and to support compatible land uses adjacent to the airport. The overlay establishes land use compatibility and navigational safety standards to reduce potential safety hazards for persons living, working and recreating near Ogilvie Field, consistent with applicable State law and administrative rules. [ORS 836.600; ORS 836.619; OAR 660-013-0070; OAR 660-013-0080]
The following definitions are incorporated consistent with applicable State law and administrative rules. [ORS 836.605; ORS 836.623(6); OAR 660-013-0020; OAR 660-013- 0070(1)A., B.; OAR 660-013-0080(1)A.]
Airport. The strip of land used for taking off and landing aircraft, together with all adjacent land used in connection with the aircraft landing or taking off from the strip of land, including but not limited to land used for existing airport uses.
Airport Direct Impact Area. The area located within 5,000 feet of an airport runway, excluding lands within the runway protection zone and approach surface.
Airport Elevation. The highest point of an airport's usable runway, measured in feet above mean sea level.
Airport Imaginary Surfaces. Imaginary areas in space and on the ground that are established in relation to the airport and its runways. Imaginary areas are defined by the primary surface, runway protection zone, approach surface, horizontal surface, conical surface and transitional surface.
Airport Noise Impact Boundary. Areas located within 1,500 feet of an airport runway or within established noise contour boundaries exceeding 55 Ldn.
Airport Secondary Impact Area. The area located between 5,000 and 10,000 feet from an airport runway.
Airport Sponsor. The owner, manager, or other person or entity designated to represent the interests of an airport.
Approach Surface. A surface longitudinally centered on the extended runway centerline and extending outward and upward from each end of the primary surface.
Conical Surface. A surface extending outward and upward from the periphery of the horizontal surface at a slope of 20 to 1 for a horizontal distance of 4,000 feet.
Department of Aviation. The Oregon Department of Aviation, formerly the Aeronautics Division of the Oregon Department of Transportation.
FAA. The Federal Aviation Administration.
FAA's Technical Representative. As used in this ordinance, the federal agency providing the FAA with expertise on wildlife and bird strike hazards as they relate to airports. This may include, but is not limited to, the USDAAPHIS-Wildlife Services.
Height. The highest point of a structure or tree, plant or other object of natural growth, measured from mean sea level.
Horizontal Surface. A horizontal plane 150 feet above the established airport elevation, the perimeter of which is constructed by swinging arcs of specified radii from the center of each end of the primary surface of each runway of each airport and connecting the adjacent arcs by lines tangent to those arcs. The radius of each arc is:
Non-precision Instrument Runway. A runway having an existing instrument approach procedure utilizing air navigation facilities with only horizontal guidance, or area type navigation equipment, for which a straight-in non-precision instrument approach has been approved, or planned, and for which no precision approach facilities are planned or indicated on an FAA approved airport layout plan or other FAA planning document.
Obstruction. Any structure or tree, plant or other object of natural growth that penetrates an imaginary surface.
Other than Utility Runway. A runway that is constructed for and intended to be used by turbine driven aircraft or by propeller-driven aircraft exceeding 12,500 pounds gross weight.
Precision Instrument Runway. A runway having an existing instrument approach procedure utilizing air navigation facilities that provide both horizontal and vertical guidance, such as an Instrument Landing System (ILS) or Precision Approach Radar (PAR). It also means a runway for which a precision approach system is planned and is so indicated by an FAA-approved airport layout plan or other FAA planning document.
Primary Surface. A surface longitudinally centered on a runway. When a runway has a specially prepared hard surface, the primary surface extends 200 feet beyond each end of that runway. When a runway has no specially prepared hard surface, or planned hard surface, the primary surface ends at each end of that runway. The elevation of any point on the primary surface is the same as the elevation of the nearest point on the runway centerline. The width of the primary surface is:
Public Assembly Facility. For the purposes of Chapter 5-2.5, a permanent or temporary structure or facility, place or activity where concentrations of people gather in reasonably close quarters for purposes such as deliberation, education, worship, shopping, employment, entertainment, recreation, sporting events, or similar activities. Public assembly facilities include, but are not limited to, schools, churches, conference or convention facilities, employment and shopping centers, arenas, athletic fields, stadiums, clubhouses, museums, and similar facilities and places, but do not include parks, golf courses or similar facilities unless used in a manner where people are concentrated in reasonably close quarters. Public assembly facilities also do not include air shows, structures or uses approved by the FAA in an adopted airport master plan, or places where people congregate for short periods of time such as parking lots or bus stops.
Runway. A defined area on an airport prepared for landing and takeoff of aircraft along its length.
Runway Protection Zone (RPZ). An area off the runway end used to enhance the protection of people and property on the ground. The RPZ is trapezoidal in shape and centered about the extended runway centerline. The inner width of the RPZ is the same as the width of the primary surface. The outer width of the RPZ is a function of the type of aircraft and specified approach visibility minimum associated with the runway end. The RPZ extends from each end of the primary surface for a horizontal distance of:
[NOTE: The outer width of the RPZ is specified by airport type in OAR 660, Div. 13, Exhibit 4]
Significant. As it relates to bird strike hazards, "significant" means a level of increased flight activity by birds across an approach surface or runway that is more than incidental or occasional, considering the existing ambient level of flight activity by birds in the vicinity.
Structure. Any constructed or erected object which requires location on the ground or is attached to something located on the ground. Structures include but are not limited to buildings, decks, fences, signs, towers, cranes, flagpoles, antennas, smokestacks, earth formations and overhead transmission lines. Structures do not include paved areas.
Transitional Surface. Those surfaces that extend upward and outward at 90 degree angles to the runway centerline and the runway centerline extended at a slope of seven (7) feet horizontally for each foot vertically from the sides of the primary and approach surfaces to the point of intersection with the horizontal and conical surfaces. Transitional surfaces for those portions of the precision approach surfaces which project through and beyond the limits of the conical surface, extend a distance of 5,000 feet measured horizontally from the edge of the approach surface and at a 90 degree angle to the extended runway centerline.
Utility Runway. A runway that is constructed for and intended to be used by propeller driven aircraft of 12,500 pounds maximum gross weight or less.
Visual Runway. A runway intended solely for the operation of aircraft using visual approach procedures, where no straight-in instrument approach procedures or instrument designations have been approved or planned, or are indicated on an FAA-approved airport layout plan or any other FAA planning document.
Water Impoundment. Includes wastewater treatment settling ponds, surface mining ponds, detention and retention ponds, artificial lakes and ponds, and similar water features. A new water impoundment includes an expansion of an existing water impoundment except where such expansion was previously authorized by land use action approved prior to the effective date of the AASC ordinance.
The airport elevation, the airport noise impact boundary, and the location and dimensions of the runway, primary surface, runway protection zone, approach surface, horizontal surface, conical surface and transitional surface, as delineated by the Ogilvie Field Airport Master Plan, are hereby made part of the Official City of John Day Zoning Map.
All lands, waters and airspace, or portions thereof, that are located within these boundaries or surfaces shall be subject to the requirements of this overlay zone. [ORS 836.619; OAR 660-0130040(8); OAR 660-013-0070(1); OAR 660-013-0080(1)]
Except as otherwise provided herein, written notice of applications for land use or limited land use decisions, including comprehensive plan or zoning amendments, in an area within this overlay zone, shall be provided to the airport sponsor and the Department of Aviation in the same manner as notice is provided to property owners entitled by law to written notice of land use or limited land use applications. See Development Code Article 5-4. [ORS 836.623(1); OAR 738-100-010; ORS 215.416(6); ORS 227.175(6)]
All uses permitted by the underlying zone shall comply with the height limitations in this Section. When height limitations of the underlying zone are more restrictive than those of this overlay zone, the underlying zone height limitations shall control. [ORS 836.619; OAR 660-0130070]
An applicant seeking a land use or limited land use approval in an area within this overlay zone shall provide the following information in addition to any other information required in the permit application:
Applications for land use or building permits for properties within the boundaries of this overlay zone shall comply with the requirements of this chapter as provided herein. [ORS 836.619; OAR 660-013-0080]
Any use or activity that would result in the establishment or expansion of a water impoundment shall comply with the requirements of this section. [ORS 836.623(2); OAR 660-013-0080(1)(f)]
Within this overlay zone, property owners who apply for land use or limited land use decisions, for building permits for new residential, commercial, industrial, institutional or recreational buildings or structures intended for inhabitation or occupancy by humans or animals, or for expansions of such buildings or structures by the lesser of 50% or 1,000 square feet, shall, as a condition of obtaining such approval or permits, dedicate an avigation easement to the airport sponsor. The avigation easement shall be in a form acceptable to the airport sponsor and shall be signed and recorded in the deed records of the County. The avigation easement shall allow unobstructed passage for aircraft and ensure safety and use of the airport for the public. Property owners or their representatives are responsible for providing the recorded instrument prior to issuance of building permits.
In any zone which is a GH Geological Hazard Overlay, the requirements and standards of this Chapter shall apply in addition to those of the underlying zone; provided, that if a conflict in regulations or standards occurs, the provisions of this Chapter shall govern. The purpose of the GH overlay zone is to promote the public safety and welfare by preventing certain types of development in those areas which natural hazards or other factors pose threats to human occupancy safety.
The provisions of this Chapter shall apply to all areas of special geological hazards within the jurisdiction of the City. The areas of special geological hazard identified by the Oregon Department of Geology and Mineral Industries in a report entitled “Engineering Geology of the John Day Area, Grant County, Oregon – Dated 1975” are hereby adopted by reference and declared to be a part of this Title, and thereof, the provisions of this Chapter shall apply to all geological hazard areas identified by said report.
In a zone with which the GH Zone is an overlay, the following uses are the only uses permitted outright, and these uses are permitted only if such uses are permitted in the zone regulations for the primary zone:
In a zone with the GH overlay, those uses permitted by the primary zone shall be permitted, subject to this Chapter and the provisions of the primary zone.
No person shall construct, reconstruct or install a development, install a mobile home, or divide land in a GH Zone unless a permit has been received for the work, except for those uses permitted by 5-2.6.040 of this Chapter. Except for improvement of an existing structure which is less than substantial as determined by a certified building official or the City upon appeal, no permit shall be issued unless the work will be reasonably safe from geological hazard and otherwise comply with this Chapter and this Title, and other applicable regulations. Said permits shall be processed in the same manner as a conditional use permit under this Title as set forth in Chapter 5-4.4 of this Title.
An application for a use or development in a GH overlay zone shall be accompanied by the following:
An access route within a GH overlay zone shall comply with the following:
The degree of geological hazard protection afforded by the provisions of this Title is considered reasonable for regulatory purposes and is based upon engineering and scientific methods of study. Greater hazards than those anticipated by these provisions may occur on occasion or the natural hazard may be increased by human or natural causes. The identification of areas subject to geological hazards pursuant to the provisions of this Title does not imply that lands outside such areas will be free from such hazards. This Title shall not create liability on the part of the City or any office or employee thereof for any damages that result from reliance of the provisions or designations of this Title or any administrative decisions lawfully made thereunder.
The Park Reserve (PR) Zone applies to park lands, existing and/or proposed, consistent with the John Day Comprehensive Plan and as designated on the Zoning Map. The purpose of the PR zone is to promote the public safety and welfare by preventing certain types of development in those areas which are best suited or deemed necessary for public protection against development for parks, open space or other natural resource qualities not protected by other zone designations.
In a PR zone, the following uses and their accessory facilities are permitted outright. New development or modification of existing development may be subject to Land Use Review or Site design Review procedures as described in Chapter 5-4.2 of this title.
In a PR zone, the following uses and their accessory uses are permitted when authorized in accordance with Chapter 5-4.4 of this Title:
In a PR zone, the following dimensional standards shall apply:
In a PR ozone, the following setback requirements shall apply:
In addition to the standards and conditions that may be attached to the approval of a conditional use as provided by Chapter 5-4.4 of this Title, the following limitations shall apply to a conditional use in a PR zone:
The Greenway (GW) Overlay applies to riparian areas and other open spaces, consistent with the John Day Comprehensive Plan and as designated on the Zoning Map. In any zone which is a GW overlay zone, the requirements and standards of this Chapter shall apply in addition to those of the underlying zone; provided, that if a conflict in regulations or standards occurs, the provisions of this Chapter shall govern. The purpose of the GW overlay zone is to provide an area adjoining certain identified streams which is uncluttered and unobstructed by structures or other personal property on the land within the zone.
In a GW overlay zone, the following uses are permitted outright:
All uses not included in Section 5-2.8.020 shall be conditional uses and subject to approval in accordance with the provisions of Chapter 5-4.4 of this Title and limitations of Section 5-2.8.040 of this Chapter.
No use shall be permitted that is not in compliance with the following conditions:
In addition to the standard notice requirements, notice of any application for a use in a GW overlay zone shall be provided to the affected resource managing agency(s).
The GW overlay zone shall comprise an area abutting Canyon Creek and the John Day River, on each side thereof, for a distance perpendicular to and (20 feet for Canyon Creek) (20 feet for John Day River) distant from the normal average high water mark or identifiable stream channel.
The following factors, at a minimum, shall be considered in the review of an application for a land use in the GW overlay zone:
A. Statutory Authorization
The State of Oregon has in ORS 197.175 delegated the responsibility to local governmental units to adopt floodplain management regulations designed to promote the public health, safety, and general welfare of its citizenry. Therefore, the City of John Day does ordain as follows:
B. Findings of Fact
I. The flood hazard areas of John Day are subject to periodic inundations which may result in loss of life and property, health and safety hazards, disruption of commerce and governmental services, extraordinary public expenditures for flood protection and relief and impairment of the tax base, all of which adversely affect the public health, safety, and general welfare.
II. The flood losses may be caused by the cumulative effect of obstructions in special flood hazard areas which increase flood heights and velocities, and when inadequately anchored, cause damage in other areas. uses that are inadequately floodproofed, elevated, or otherwise protected from flood damage also contribute to flood loss.
C. Statement of Purpose
It is the purpose of this ordinance to promote public health, safety, and general welfare, and to minimize public and private losses due to flooding in flood hazard areas by provisions designed to:
D. Methods of Reducing Flood Losses
In order to accomplish its purposes, this ordinance includes methods and provisions for:
Unless specifically defined below, words or phrases used in this ordinance shall be interpreted so as to give them the meaning they have in common usage.
Appeal: A request for a review of the interpretation of any provision of this ordinance or a request for a variance.
Area of shallow flooding: A designated Zone AO, AH, AR/AO or AR/AH on a community's Flood Insurance Rate Map (FIRM) with a one percent or greater annual chance of flooding to an average depth of one to three feet where a clearly defined channel does not exist, where the path of flooding is unpredictable, and where velocity flow may be evident. Such flooding is characterized by ponding or sheet flow.
Area of special flood hazard: The land in the floodplain within a community subject to a 1 percent or greater chance of flooding in any given year. It is shown on the Flood Insurance Rate Map (FIRM) as Zone A, AO, AH, A1-30, AE, A99, AR. "Special flood hazard area" is synonymous in meaning and definition with the phrase "area of special flood hazard".
Base flood: The flood having a one percent chance of being equaled or exceeded in any given year.
Base flood elevation (BFE): The elevation to which floodwater is anticipated to rise during the base flood.
Basement: Any area of the building having its floor subgrade (below the ground level) on all sides.
Below-grade crawl space: An enclosed area below the base flood elevation in which the interior grade is not more than two feet below the lowest adjacent exterior grade and the height, measured from the interior grade of the crawlspace to the top of the crawlspace foundation, does not exceed 4 feet at any point.
Building: See "Structure."
Critical facility: A facility for which even a slight chance of flooding might be too great. Critical facilities include, but are not limited to schools, nursing homes, hospitals, police, fire and emergency response installations, wastewater treatment facilities, and installations which produce, use, or store hazardous materials or hazardous waste.
Development: Any man-made change to improved or unimproved real estate, including but not limited to buildings or other structures, mining dredging, filling, grading, paving, excavation, or drilling operations or storage of equipment or materials.
Elevated building: For insurance purposes, a nonbasement building which has its lowest elevated floor raised above ground by foundation walls, shear walls, posts, piers, pilings, or columns.
Flood or Flooding:
Floodplain or flood prone area: Any land area susceptible to being inundated by water from any source. See "Flood or flooding."
Floodplain administrator: The community official designated by title to administer and enforce the floodplain management regulations.
Floodplain management: The operation of an overall program of corrective and preventive measures for reducing flood damage, including but not limited to emergency preparedness plans, flood control works, and floodplain management regulations.
Floodplain management regulations: Zoning ordinances, subdivision regulations, building codes, health regulations, special purpose ordinances (such as floodplain ordinance, grading ordinance, and erosion control ordinance) and other application of police power. The term describes such state or local regulations, in any combination thereof, which provide standards for the purpose of flood damage prevention and reduction.
Flood elevation study: An examination, evaluation and determination of flood hazards and, if appropriate, corresponding water surface elevations, or an examination, evaluation and determination of mudslide (i.e., mudflow) and/or flood-related erosion hazards.
Flood Insurance Rate Map (FIRM): The official map of a community, on which the Federal Insurance Administrator has delineated both the special hazard areas and the risk premium zones applicable to the community. A FIRM that has been made available digitally is called a Digital Flood Insurance Rate Map (DFIRM).
Flood Insurance Study (FIS): See "Flood elevation study".
Flood proofing: Any combination of structural and nonstructural additions, changes, or adjustments to structures which reduce or eliminate risk of flood damage to real estate or improved real property, water and sanitary facilities, structures, and their contents.
Floodway: The channel of a river or other watercourse and the adjacent land areas that must be reserved in order to discharge the base flood without cumulatively increasing the water surface elevation more than a designated height. Also referred to as "Regulatory Floodway."
Functionally dependent use: A use which cannot preform its intended purpose unless it is located or carried out in close proximity to water. The term includes only docking facilities, port facilities that are necessary for the loading and unloading of cargo or passengers, and ship building and ship repair facilities, and does not include long term storage or related manufacturing facilities.
Hazardous material: The Oregon Department of Environmental Quality defines hazardous materials to include any of the following:
Highest adjacent grade: The highest natural elevation of the ground surface prior to construction next to the proposed walls of a structure.
Historic structure: Any structure that is:
Letter of Map Change (LOMC): Means an official FEMA determination, by letter, to amend or revise effective Flood Insurance Rate Maps and Flood Insurance Studies. The following are categories of LOMCs:
Lowest floor: The lowest floor of the lowest enclosed area (including basement). An unfinished or flood resistant enclosure, usable solely for parking of vehicles, building access or storage in an area other than a basement area is not considered a building’s lowest floor, provided that such enclosure is not built so as to render the structure in violation of the applicable non-elevation design requirements of this ordinance.
Manufactured dwelling: A structure, transportable in one or more sections, which is built on a permanent chassis and is designed for use with or without a permanent foundation when attached to the required utilities. The term "manufactured dwelling" does not include a "recreational vehicle" and is synonymous with “manufactured home”.
Manufactured dwelling park or subdivision: A parcel (or contiguous parcels) of land divided into two or more manufactured dwelling lots for rent or sale.
Mean sea level: For purposes of the National Flood Insurance Program, the National Geodetic Vertical Datum (NGVD) of 1929 or other datum, to which Base Flood Elevations shown on a community's Flood Insurance Rate Map are referenced.
New construction: For floodplain management purposes, “new construction” means structures for which the “start of construction” commenced on or after the effective date of a floodplain management regulation adopted by the City of John Day and includes any subsequent improvements to such structures.
Recreational vehicle: A vehicle which is
Regulatory floodway: See "floodway".
Sheet flow area: See "Area of shallow flooding".
Special flood hazard area: See “Area of special flood hazard” for this definition.
Start of construction: Includes substantial improvement and means the date the building permit was issued, provided the actual start of construction, repair, reconstruction, rehabilitation, addition, placement, or other improvement was within 180 days from the date of the permit. The actual start means either the first placement of permanent construction of a structure on a site, such as the pouring of slab or footings, the installation of piles, the construction of columns, or any work beyond the stage of excavation; or the placement of a manufactured home on a foundation. Permanent construction does not include land preparation, such as clearing, grading, and filling; nor does it include the installation of streets and/or walkways; nor does it include excavation for a basement, footings, piers, or foundations or the erection of temporary forms; nor does it include the installation on the property of accessory buildings, such as garages or sheds not occupied as dwelling units or not part of the main structure. For a substantial improvement, the actual start of construction means the first alteration of any wall, ceiling, floor, or other structural part of a building, whether or not that alteration affects the external dimensions of the building.
Structure: For floodplain management purposes, a walled and roofed building, including a gas or liquid storage tank, that is principally above ground, as well as a manufactured dwelling.
Substantial damage: Damage of any origin sustained by a structure whereby the cost of restoring the structure to its before-damaged condition would equal or exceed 50 percent of the market value of the structure before the damage occurred.
Substantial improvement: Any reconstruction, rehabilitation, addition, or other improvement of a structure, the cost of which equals or exceeds 50 percent of the market value of the structure before the "start of construction" of the improvement. This term includes structures which have incurred "substantial damage," regardless of the actual repair work performed. The term does not, however, include any project for improvement of a structure to correct existing violations of state or local health, sanitary, or safety code specifications which have been identified by the local code enforcement official and which are the minimum necessary to assure safe living conditions.
Variance: A grant of relief by the City of John Day from the terms of a flood plain management regulation.
Violation: The failure of a structure or other development to be fully compliant with the community's floodplain management regulations. A structure or other development without the elevation certificate, other certifications, or other evidence of compliance required in this ordinance is presumed to be in violation until such time as that documentation is provided.
Water dependent: A structure for commerce or industry which cannot exist in any other location and is dependent on the water by reason of intrinsic nature of its operations.
Water surface elevation: The height, in relation to the National Geodetic Vertical Datum (NGVD) of 1929, or other datum, of floods of various magnitudes and frequencies in the floodplains of coastal or riverine areas.
A. Lands to which this Ordinance Applies
This ordinance shall apply to all special flood hazard areas within the jurisdiction of the City of John Day, which includes both the incorporated city limits and the John Day Urban Growth Boundary.
B. Basis for Establishing the Special Flood Hazard Areas
The special flood hazard areas identified by the Federal Insurance Administrator in a scientific and engineering report entitled "The Flood Insurance Study (FIS) for the City of John Day", dated February 23, 1982, with accompanying Flood Insurance Rate Map (FIRM) panel numbers 410077001C and 4100770001 with Letter of Map Revision (LOMR) 19-10-0438P are hereby adopted by reference and declared to be a part of this ordinance. The FIS and FIRM panels are on file at the John Day City Hall.
C. Coordination with State of Oregon Specialty Codes
Pursuant to the requirement established in ORS 455 that the City of John Day administers and enforces the State of Oregon Specialty Codes, the City of John Day does hereby acknowledge that the Oregon Specialty Codes contain certain provisions that apply to the design and construction of buildings and structures located in special flood hazard areas. Therefore, this ordinance is intended to be administered and enforced in conjunction with the Oregon Specialty Codes.
D. Compliance and Penalties for Noncompliance
E. Abrogation and Severability
F. Interpretation
In the interpretation and application of this ordinance, all provisions shall be:
G. Warning and Disclaimer of Liability
The applicant shall be required to submit a Conditional Letter of Map Revision (CLOMR) when required under the following section. Ensure compliance with all applicable requirements in sections 5-2.9.040 (B.3.c) and 5-2.9.050 (A)
c. Requirement to Submit New Technical Data. A community's base flood elevations may increase or decrease resulting from physical changes affecting flooding conditions. As soon as practicable, but not later than six months after the date such information becomes available, a community shall notify the Federal Insurance Administrator of the changes by submitting technical or scientific data in accordance with Section 44 of the Code of Federal Regulations (CFR), Sub-Section 65.3. The community may require the applicant to submit such data ad review fees required for compliance with this section through the applicable FEMA Letter of Map Change (LOMC) process.
The Floodplain Administrator shall require a Conditional Letter of Map Revision prior to the issuance of a floodplain development permit for:
An applicant shall Notify FEMA within six (6) months of project completion when an applicant has obtained a Conditional Letter of Map Revision (CLOMR) from FEMA. This notification to FEMA shall be provided as a Letter of Map Revision (LOMR). The property owner shall be responsible for preparing all technical data to support the LOMR application and paying any processing or application fees associated with the LOMR, which shall be established by resolution of the city council. The Floodplain Administrator shall be under no obligation to sign the Community Acknowledgement Form, which is part of the CLOMR/LOMR application, until the applicant demonstrates that the project will or has met the requirements of this code and all applicable state and federal laws.
4. Substantial Improvement and Substantial Damage Assessments and Determinations. Conduct Substantial Improvement (SI) (as defined in section 5-2.9.020) reviews for all structural development proposal applications and maintain a record of SI calculations within permit files in accordance with section 5-2.9.040 (B.2). Conduct Substantial Damage (SD) (as defined in section 5-2.9.020) assessments when structures are damaged due to a natural hazard event or other causes. Make SD determinations whenever structures within the special flood hazard area (as established in section 5-2.9.030 (B)) are damaged to the extent that the cost of restoring the structure to its before damaged condition would equal or exceed 50 percent of the market value of the structure before the damage occurred.
C. Establishment of Development Permit
1. Floodplain Development Permit Required. A development permit shall be obtained before construction or development begins within any area horizontally within the special flood hazard area established in section 5-2.9.030 (B). The development permit shall be required for all structures, including manufactured dwellings, and for all other development, as defined in section 5-2.9.020, including fill and other development activities.
2. Application for Development Permit. Application for a development permit may be made on forms furnished by the Floodplain Administrator and may include, but not be limited to, plans in duplicate drawn to scale showing the nature, location, dimensions, and elevations of the area in question; existing or proposed structures, fill, storage of materials, drainage facilities, and the location of the foregoing. Specifically the following information is required:
D. Variance Procedure. The issuance of a variance is for floodplain management purposes only. Flood insurance premium rates are determined by federal statute according to actuarial risk and will not be modified by the granting of a variance.
Then an approved CLOMR may be required prior to approval of a floodplain permit.
b. If the requirements of section 5-2.9.050 (B.4-a) are satisfied, all new construction, substantial improvements, and other development shall comply with all other applicable flood hazard reduction provisions of 5-2.9.050
5. Standards for Shallow Flooding Areas
Shallow flooding areas appear on FIRMs as AO zones with depth designations or as AH zones with Base Flood Elevations. For AO zones the base flood depths range from one (1) to three (3) feet above ground where a clearly defined channel does not exist, or where the path of flooding is unpredictable and where velocity flow may be evident. Such flooding is usually characterized as sheet flow.
For both AO and AH zones, adequate drainage paths are required around structures on slopes to guide floodwaters around and away from proposed structures.
The Public Facilities (PF) overlay is intended to facilitate the delivery of municipal services. The PF overlay allows land uses and activities by right, consistent with plans and policies adopted by the John Day City Council.
The Public Facilities (PF) overlay is automatically applied to property owned by the City of John Day, including property acquired by the City after the effective date of this ordinance. The PF overlay automatically expires upon City disposal of said property. The requirements and standards of this Chapter shall apply, in addition to those herein specified for the underlying zone; provided, that if a conflict in regulations or standards occurs, the provisions of the PF overlay apply.
In a PF overlay zone, the following uses and their accessory uses are permitted outright:
In a PF overlay zone, the following uses and their accessory uses are permitted when authorized in accordance with Chapter 5-4.4 of this Title:
In a PF overlay zone, the following dimensional standards shall apply:
In a PR overlay zone, the following setback requirements shall apply:
In addition to the standards and conditions of the underlying zone, and those that may be attached to the approval of a conditional use as provided by Chapter 5-4.4 of this Title, the following limitations shall apply to uses in a PF overlay zone:
The Innovation Gateway (IG) Overlay applies to the area planned and evaluated as part of the John Day Innovation Gateway Plan and as designated on the Zoning Map. In any zone which is a GW overlay zone, the requirements and standards of this Chapter shall apply in addition to those of the underlying zone; provided, that if a conflict in regulations or standards occurs, the provisions of this chapter shall govern. The purpose of the IG overlay zone is to implement the recommendations of the Innovation Gateway Plan, including to create welcoming, attractive, active area on both sides of the John Day River; support establishment of a system of integrated parks and trails within and adjacent to the area; allow for an appropriate mix of commercial, industrial and institutional uses; support the City's goals associated with water reclamation and re-use; and promote use of a variety of modes of transportation to travel to, from and within the area.
The IG zone includes three sub-districts, the Northeast, Northwest and South sub-districts as depicted in Figure 5-2.11-1. Use permitted outright or as conditional uses vary within the sub-districts as described in sections 5-2.11.030 and 5-2.11.040 of this chapter.
Figure 5-2.11.1. Sub-District

Permitted uses are those allowed outright in the underlying base zones, with the exceptions summarized in Table 5-2.11.030
| Use | South Sub-District | Northwest Sub-District | Northeast Sub-District |
| Residential Uses | |||
| - New dwelling built in conjunction with a permitted commercial or industrial use | P | N | N |
| - All other residential uses | - | - | - |
| Commercial Categories | |||
| Drive-up/Drive-in/Drive-through | N | N | N |
| Hotels and Motels | P | N | N |
| Quick Vehicle Servicing of Vehicle Repair | N | S | S |
| Retail Sales and Commercial Uses1 | Y | S | S |
| Self-Service Storage2 | - | S | N |
| Industrial Categories | |||
| Industrial Service | |||
| - Fully enclosed | N | - | - |
| - Not enclosed | N | N | N |
| Manufacturing and Production | |||
| - Fully enclosed3 | S | - | - |
| - Not enclosed | N | - | - |
| Warehouse and Freight Movement | N | - | - |
| Waste Related | - | N | N |
| Wholesale Sales | |||
| - Fully enclosed, less than 20,000 square feet of floor area | N | - | - |
| - Fully enclosed, equal to or greater than 20,000 square feet of floor area | N | N | N |
| - Not enclosed | N | N | N |
| Institutional Categories | |||
| Basic Utilities | - | - | - |
| Community Service, except as otherwise allowed by Public Facilities Overlay zone | - | - | - |
| Daycare | - | - | - |
Parks and Open Space | |||
- Consistent with the John Day Innovation Gateway Area Plan | P | P | P |
- Other parks and open space uses | CU | CU | CU |
Religious institutions/churches | - | - | - |
Schools | - | - | - |
Other Categories | |||
Accessory Structures (with a permitted use) | - | - | - |
Agriculture- Greenhouses and similar horticulture | P | P | P |
Buildings and Structures Exceeding the Height Limits in Table 5-2.3.030 | - | - | - |
Radio Frequency Transmission Facilities, including building-mounted facilities, that project above roofline | - | - | - |
Utility Corridors | - | - | - |
Temporary Uses (limited to "P" and "CU" uses), per Section 5-4.9.010. | - | - | - |
Transportation Facilities (operation, maintenance, preservation, and construction in accordance with the City's Transportation System Plan) | - | - | - |
Notes:
P= Permitted; CU= Permitted as a conditional use; S= Permitted with standards; N= Not permitted; - = Refer to base zone for use status
1. Uses subject to size limitations in the northeast and northwest sub-districts subject to section 5-2.11.050 of this code
2. Self-storage uses must be within a fully enclosed building; access to individual storage units shall be provided from the interior of the building only.
3. Manufacturing and production allowed in the Southern Subdistrict only if the use includes a retail compunent.
[Placeholder for possible additional standards.]
Development standards are summarized in Table 5-2.11.050.
| Use | South Sub-District | Northwest Sub-District | Northeast Sub-District |
| Minimum Lot Area | |||
| - New dwelling built in conjunction with a permitted commercial or industrial use located above the ground floor | None | - | - |
| Minimum Lot Width | 20 ft | - | - |
| Minimum Lot Depth | None | - | - |
Maximum Building/Structure Height Ornamental and symbolic features not exceeding 200 square feet in gross floor or 15% of the total building footprint, whichever is less, and including towers, spires, cupolas, belfries, and domes, where such features are not used for human occupancy, may exceed the height limit by no more than 10 ft. | 35 ft | - | - |
| Maximum Building Size, Retail Comercial Uses | - | 5,000 sq ft | 5,000 sq ft |
Lot Coverage, Maximum Building Coverage (Foundation plane as % of site area) | 85% | 85% | 85% |
| Landscape Area (% site area). Landscape area may include a combination of plant beds, planters, and plaza space. | 15% | 15% | 15% |
| Minimum Setbacks1 | |||
| - Front, Street, Side, and Rear Property lines, except garage or carport | - | - | - |
| - Garage/Carport Entry, setback from street or vehicle accessway | - | NA | NA |
| - Alley | - | NA | NA |
| Build-to-Line1 | 20 ft | - | - |
Notes:
- = Same as indicated in base zone
1. Build-to line is measured from the edge of any adjacent public or private path or roadway providing primary access to the front of the proposed use.
Building Orientation and Commercial Block Layout
A. Purpose. The purpose of these standards is to promote pedestrian-oriented development where walking is encouraged, and to avoid conflicts between pedestrians and vehicles. Providing direct pedestrian connections between buildings and adjacent streets and pathways also encourages crime prevention, natural surveillance or security, and safety by having more "eyes-on-the-street."
B. Applicability. This section applies to projects that are subject to Site Design Review.
C. Site layout and design standards for the Northwest and Northeast Sub-districts are as described for the General Industrial base zone in section 5-2.4.060 of this code.
D. Building Orientation and Commercial Block Layout standards described in section 5-2.3.060 do not apply to the South Sub-District. Instead, the following standards are applicable to projects that are subject to Site Design Review in the South Sub-District.