6 DEFINITIONS AND RULES OF MEASUREMENT
The purpose of Chapter 5-6.1 is to define terms that are used frequently in the City of John Day Development Code, to assist decision makers in interpreting and applying the Code. Some of the terms that are defined here may have different meanings in other communities.
The following definitions are organized alphabetically and some related terms are also grouped together and cross-referenced under group headings (e.g., Transportation-Related, Environment-Related, etc.).
A
Abutting. Contiguous or adjoining. Access. See Transportation-Related terms. Accessory. Secondary or incidental to a primary use or structure.
Accessory Dwelling. See Residential Structure Types. Accessory Parking Facility. A parking facility that provides parking for one or more primary use and may be located on or off the site of the use or uses to which it is accessory. Accessory Structure. A structure of secondary importance or function on a site. In general, the primary use of the site is not carried on in an accessory structure. Accessory structures are detached from the primary structure. Examples of accessory structures include but are not limited to: garages, decks, fences, arbors, gazebos, heat pumps, workshops and other structures. See also Primary Structure. Accessory Use. A use or activity that is a subordinate part of a primary use and that is clearly incidental to a primary use on a site. See also Primary Structure. Adjacent. Abutting or located directly across a street right-of-way or easement. Administrative. A discretionary action or permit decision made without a public hearing, but requiring public notification and an opportunity for appeal. Adverse Impact or Effect. Negative effect that can be measured (e.g., noise, air pollution, vibration, dust, property values, etc.). Affordable. Housing affordable to a certain percentage of the population earning a specified level of income and spending no more than 30 percent of their income on housing expenses. For more information, contact the federal Department of Housing and Urban Development and the Oregon Department of Housing and Community Services. Airport-Related Definitions. The airport-related definitions of the Oregon Department of Aviation’s Land Use Compatibility Handbook are hereby incorporated by reference. Alley. See Transportation-Related definitions. Alteration. See Development-Related definitions. Ambient. Normal or background environmental conditions, as in the level of light, dust or noise. Applicant. A person who applies for a land use review. An applicant can be the owner of the property, a contract purchaser, or someone who is legally authorized to represent the owner, such as a builder, developer, contract purchaser, consultant, architect, or similar individual. Arterial. See Transportation-Related definitions. Attached House (Townhouse or Rowhouse). See Residential Structure Types. Attached Structure. See Development-Related definitions.
BBed and Breakfast Inn. Any establishment located in a structure designed for a single family residence and structures appurtenant thereto, regardless of whether the owner or operator of the establishment resides in any of the structures, that: (a) Has more than two rooms for rent on a daily basis to the public; and (b) Offers a breakfast meal as part of the cost of the room. Berm. A small man-made rise or hill in a landscape, which is, intended to buffer or visually screen certain developments, such as parking areas. Bikeway. See Transportation-Related definitions. Block. All of the property bounded by streets, rights-of-way (pedestrian or vehicle ways), water features, or any combination thereof, but is not divided or separated in any way by streets or water features. Block Face/Frontage. All of the property fronting on one side of a street that is between intersecting or intercepting streets, or that is between a street and a water feature, or end of a dead end street. An intercepting street determines the boundary of the block frontage only on the side of the street that it intercepts. See Figure.
Block Frontage
Bollard. A post of metal, wood or masonry that is used to separate or direct traffic (vehicles, pedestrians and/or bicycles). Bollards may contain sidewalk or pathway lighting. Building. See adopted Building Code. Building Official. The person who enforces the building ordinances and regulations for the City, and other ordinances and regulations as assigned. Build-to Line. A maximum front or street yard setback, which is typically required along commercial street frontages to promote a storefront character and pedestrian-oriented design.
C
Canopy. A permanent roofed unenclosed structure that may be free-standing or be partially attached to a building, for the purpose of providing shelter; typically used for sheltering patrons on foot and/or in motor vehicles; does not include a completely enclosed structure. See also, Carport (below), and Tree Canopy, under Environment-Related definitions. Capacity. Maximum holding or service ability, as used for transportation, utilities, parks and other public facilities. See also, definition of “Occupancy” in applicable building codes. Carport. A stationary structure consisting of a roof, its supports, not more than one wall or storage cabinets substituting for a wall, used to shelter motor vehicles, recreational vehicles, or boats; does not include temporary shelters or canopies not affixed to a permanent foundation per applicable building codes. Centerline Radius. The radius of a centerline of a street right-of-way. Certificate of Occupancy. A certificate of occupancy or a certificate of inspection issued by the Building Official at the completion of a building permit or change of occupancy. Change of Use. Change in the primary type of use on a site. Child Care. Facilities that provide care and supervision of minor children for periods of less than 24 hours. “Family child care providers” provide care for not more than 16 children in a home. See ORS 657A.440(4) for applicable requirements.
City. The City of John Day, Oregon. Clear and Objective. Decision criteria and standards that do not involve substantial discretion or individual judgment in their application. Clearing (as in clearing and grading). See Development-Related Definitions. Club. Any organization, group, or association supported by the members thereof, the purpose of which is to render a service customarily rendered for members and their guests but shall not include any organization, group, or association, the chief activity of which is to render a service customarily carried on as a business. Collector. See Transportation-Related definitions. Commission. The John Day Planning Commission. Commercial. Land use involving buying/selling of goods or services as the primary activity. Common Area. Land commonly owned to include open space, landscaping or recreation facilities (e.g., may be managed by a homeowners' association). Comprehensive Plan. The current adopted Comprehensive Plan of the City of John Day. Conditional Use. A use that requires a Conditional Use Permit. See Chapter 5-4.4. Condominium. Ownership of a single unit in a multi-unit structure that includes common areas and facilities; includes both residential and commercial condominiums. See ORS 100 for applicable requirements. Conservation Easement. See Environment-Related definitions. Corner lot. See Lot, Corner lot. Corner Radius. The radius of a street corner, as measured around the curb or edge of pavement. Cottage. See Residential Structure types. Council. The City Council of John Day, Oregon. Courtyard. See Development-Related definitions. Crown Cover. The area directly beneath the crown and within the drip line of a tree or shrub. The crown consists of the above ground branches, stems, and leaves. DDays. Calendar days, unless specifically stated as working days. Working days include Monday through Friday, excluding Federal holidays. Dead-End Street. See Transportation-Related Definitions. Dedication. The designation of land by its owner for any public use as shown on a subdivision plat or deed. The term may also be used for dedications to a private homeowners' association. Density(ies). A measurement of the number of dwelling units in relationship to a specified amount of land. As used in this Code, density is determined based on the gross parcel or lot area, which includes land that will be dedicated as right-of-way and land that will be reserved as open space through the development process. It does not include land previously dedicated as right-of-way. Density is a measurement used generally for residential uses. Development-Related Definitions
Disabled Person. For the purposes of this Code, a disabled person is a person who has a condition of physical or mental disability, which substantially limits one, or more major life activities as stated in Section 504 of the Federal Rehabilitation Act of 1973 and state law.
Discontinued Use. A use that physically left the land it was on, a permitted use that ceased, or a use terminated at the end of a lease or contract. See Chapter 5.2, Non-Conforming Uses and Developments. A use is considered temporarily discontinued during the first year (12 months) after it ceases, after which it is considered permanently discontinued. Discretionary. A permit action or decision that involves substantial judgment or discretion. Disturbance Area. See Environment-Related Definitions.
Drainage way. See Environment-Related Definitions. Drip-line. See Environment-Related definitions. Drive-through/Drive-up Facility. A facility or structure that is designed to allow drivers to remain in their vehicles before and during an activity on the site. Drive-through facilities are a type of site development that is usually found in conjunction with a Quick Vehicle Servicing use or a Retail Sales and Service use. Drive-through/drive-up facilities also include facilities designed for the rapid servicing of vehicles, where the drivers may or may not remain in their vehicles, but where the drivers usually either perform the service for themselves, or wait on the site for the service to be rendered. Drive-through facilities may serve the primary use of the site or may serve accessory uses. Examples are drive-up windows; automatic teller machines; coffee kiosks and similar vendors; menu boards; order boards or boxes; gas pump islands; car wash facilities; auto service facilities, such as air compressor, water, and windshield washing stations; quick-lube or quick-oil change facilities; and drive-in theaters. All driveways queuing and waiting areas associated with a drive-through/drive-up facility are similarly regulated as part of such facility. Driveway. See Development-Related Definitions. Driveway Apron/Approach. See Development-Related Definitions. Duplex. See Residential Structure Types. Dwelling Unit. See Residential Structure Types. EEasement. A grant of rights by a property owner that allows others to use the owner’s land for a specific purpose, such as access, or to locate utilities. Recorded and on record at Grant County. Eave. See Development-Related Definitions. Elevation. Height in feet and inches above a specified datum. Elevation, Building. Scaled drawing of the outside wall of a building or structure, from grade to roof ridgeline, typically specifying materials, color, and dimensions. Emergency Apparatus Lane or Fire Lane. See Development-Related definitions and applicable Fire Code. Environment-Related Definitions.
Evidence. Application materials, plans, data, testimony and other factual information used to demonstrate compliance or non-compliance with a code standard or criterion. Excavating or Filling. The removal, placement, or replacement of earth, concrete, asphalt, and similar non-decomposable materials whether permanent or temporary in nature. Excavating or filling does not include the movement of earth or placement of gravel, asphalt, or other paving materials that is done in conjunction with road improvements. It does not include the excavation of mineral or aggregate resources. Excavating or filling includes the terms grading, preloading, surcharging, and stockpiling. Exterior Display. The outdoor display of products, vehicles, equipment, and machinery for sale or lease. Exterior display functions as an outdoor showroom for customers to examine and compare products. The display area does not have to be visible to the street. Exterior display does not include storage of goods placed or parked outside, if the goods are not examined and compared by customers in such location. It does not include damaged or inoperable vehicles, vehicles or equipment being serviced, bulk goods and materials, and other similar products. Exterior display does not include car and boat sales and/or leasing when such vehicles are not accessible to customers to inspect and compare; this situation is considered exterior storage. Examples of uses that often have exterior display are car and boat sales and leasing, and plant nurseries. See also, Exterior Work Activities and Exterior Storage.
Exterior Improvements. See Development-Related Definitions. Exterior Storage. Exterior storage includes the outdoor storage of goods exclusive of outdoor displays for sale or rent. The goods may be for sale or lease, but if so, the storage area is generally not for the purpose of inspection or comparison of goods by customers. Exterior storage includes the storage of raw or finished goods (packaged or bulk), including gases, oil, chemicals, gravel; building materials, packing materials; salvage goods; machinery, tools, and equipment; vehicles that are for sale, lease or rent, which are not accessible to the customer to inspect or compare; vehicles that have been unloaded and are waiting transport to off-site locations; vehicles that have been towed and are being kept in an impound lot; and other similar items. The storage of recreational vehicles outdoors is also considered exterior storage. Damaged or inoperable vehicles, or vehicles that have missing parts, which are kept outside are also included as exterior storage. Examples of uses that often have exterior storage are lumber yards, wrecking yards, tool and equipment rental, bark chip and gravel sales, car dealerships or car rental establishments, and port facilities. See also, Exterior Display and Exterior Work Activities.
Exterior Work Activities. Exterior work activities include the outdoor processing, assembly, or fabrication of goods; the maintenance, repair, and salvage of vehicles and equipment; and other similar activities that generally have an industrial orientation. Exterior work activities do not include normal pick-up and deliveries to a site, parking, excavation and fills, exterior eating areas, outdoor recreation, or outdoor markets. See Exterior Display and Exterior Storage. FFacade. See Development-Related definitions. Family Day Care. See Child Care Center, Family Child Care. Farming or Farm Use. As used in this Code, “agriculture” is the same as “farm use”. [See ORS 215.203(2)(a).] Includes utilization of land to raise, harvest, or sell crops; feed, breed, manage, and sell livestock, poultry, fur-bearing animals, honeybees, or their produce; dairy and sell dairy products; or any other agricultural or horticultural use, animal husbandry, timber agricultural use, or combination thereof. Farm uses include preparation or processing and storage of products raised on such land, but do not include construction or use of dwellings and other buildings customarily provided in conjunction with farm uses. Final Plat. The diagrams, drawings, and other writing containing all the descriptions, locations, dedications, provisions and information concerning a land division, pursuant to ORS 92 and Chapter 5-4.3 of this Code. Flag Lot. See Lot. Flood Hazard Area. See Chapter 5-2.9 Flood Plain overlay zone. Floor Area; Main Floor. See Development-Related definitions. Foot-candle. A unit of illumination (light standards), equal to one (1) lumen per square foot, or the amount of light from a source of one candela directly thrown on a square foot of surface at a distance of one (1) foot. Frontage. The dimension of a property line abutting a public or private street. Frontage Street or Road. A minor street that parallels an arterial street or highway in order to provide access to abutting properties and minimize direct access onto the arterial or highway. Functional Classification. The classification given to streets by the road authority (e.g., “local/collector/arterial”). See Transportation-Related definitions, and Section 5-3.4.010 for street standards. Future Division Plan or Future Development Plan. A document that shows lot, tract and right-of-way boundaries for all potential future phases of a land division. The plan is not binding on the City or the applicant. The purpose of the plan is to document that the design of the first phase of the plan does not preclude future phases or future development of adjacent properties from meeting City standards. GGarage. A covered permanent structure designed to provide shelter for vehicles, and which is accessory to a use in these structure types: houses, attached houses, duplexes, mobile homes, or houseboats. Carports are considered garages. Floor area adjacent to the space designed to provide shelter for vehicles, if not entirely separated from the garage area by floor-to-ceiling walls, is considered part of the garage. A garage may be attached to or detached from another structure. See also Structured Parking. Grade. The lowest point of elevation of the finished surface of the ground, paving, or sidewalk within the area between the building and the property line or, when the property line is more than 5 feet from the building, between the building and a line 5 feet from the building. This is the definition used in the Oregon Structural Specialty Code (the International Building Code as amended by the State of Oregon.) Grading. See Development-Related Definitions. Ground Cover. Living or processed plant material (e.g., mulch, bark chips), river rock and cinders used for aesthetic purposes and to prevent erosion (i.e., cover bare ground) in designated landscape areas. See Chapter 5-3.2, Landscaping. Group Living Structure. See Residential Structure Types. HHardscape. Non-vegetative landscape materials or installations, including pathways, decorative pavers, benches, drinking fountains, arbors, pergolas, playgrounds, plazas, and similar amenities. Hazardous Substances. Any substance, material, or waste listed below:
Historic Resource-Related Definitions. See Historic-Cultural Resources provisions. Home Occupation, Home Occupation Site. A business activity that is carried out on the same site as a dwelling unit, and which is accessory to the Household Living use on the site, subject to the provisions of Chapter 5-2.2 (Residential Districts) and Section 5-4.9.030 (Home Occupation Permits). Hotel/Motel. A building or portion thereof designed and used for occupancy of transient individuals lodged with or without meals for a continuous period not to exceed 29 days. (See ORS 446.310.) House. See Residential Structure Types. Household. One or more persons related by blood, marriage, civil union, legal adoption or guardianship, plus not more than 5 additional persons, who live together in one dwelling unit; or one or more handicapped persons as defined in the Fair Housing Amendments Act of 1988, plus not more than 5 additional persons, who live together in one dwelling unit. IImpervious Surface. Surface area that does not allow for water infiltration, or has a runoff coefficient of 0.90 or more (e.g., non-permeable pavement, solid rock roofs, foundations, underground tanks and vaults, and similar areas). Incidental and Subordinate to. Secondary to, and less apparent, than the primary use or other portion of the development. Infill. The development of vacant, bypassed lands located in an area that is predominately developed at densities/land use intensities allowed by zoning. JJunk Yard.
KKennel. Any lot or premises where three (3) or more dogs or cats aged 6 months or older are boarded or bred for compensation. Establishments where animals are offered for sale as the primary use, such as pet stores, are not classified as kennels. LLand Division. The process of dividing land to create parcels or lots. See Chapter 5-4.3. Landing (stairs). A level part of a staircase, usually at the end of a flight of stairs. Landscaping. Any combination of living plants such as trees, shrubs, plants, vegetative ground cover or turf grasses, and may include structural features such as walkways, fences, benches, plazas, works of art, reflective pools, fountains or the like. Also includes irrigation systems, mulches, topsoil, and re-vegetation or the preservation, protection and replacement of trees. Land Use. The activity or activities that occur on a piece of land. Activities may be individually identified as primary or accessory uses. See also, Chapter 5-1.3 Use Categories. Land Use Approval. A land use decision for approval or approval with conditions under Article 4; includes any time limits or other restrictions that may apply to the land use decision. Land Use District. As used in this code, a land use district is the same as a zoning district. Land Use Review. An application for land use approval or the review of such application; typically limited to determining conformance with standards of the applicable land use district and does not include site design review, conditional use permit, or land division approval.
Lane, Mid-Block. See Transportation-Related definitions. Living Area. The habitable floor area of a residential structure conforming to applicable building codes; typically does not include garage area, and attic and basement areas with substandard ceiling height or substandard egress. Legislative. A legislative action or decision is the making of law, as opposed to the application of existing law to a particular use (e.g., adoption of, or amendment to, a comprehensive plan or development regulation). See also, Chapter 5-4.1.050 (Type IV Review). Light Manufacture. See Chapter 5-1.3, Use Categories. Livestock. Domestic animal types customarily raised or kept on farms. See Agriculture. Local Improvement District (LID). A small public district formed for the purpose of financing local improvements (paving of streets, construction of sidewalks, street lighting, water mains, storm sewers, parks, etc.) within a zone of benefit, usually assessed against abutting properties. Property owners within the LID are assessed for the cost of the improvements in accordance with ORS 223.387-223.485. Loading Area. The area available for the maneuvering and standing of vehicles engaged in delivering and loading goods, freight, or other articles. See also, Chapter 5-3.3, Parking and Loading. Longest Street-Facing Wall. The longest wall that faces a street. If two or more street-facing walls are of equal length, then the applicant chooses which is to be the longest street-facing wall for purposes of applying regulations of the Development Code. See also, Facade. Lot. A lot is a legally defined piece of land other than a tract that is the result of a land division. The following definitions for “lot” apply to the State definition of both lot, (result of subdividing), and parcel, (result of partitioning). See also, Ownership and Site.
Lot Lines/Property Lines. The property lines along the edge of a lot or site.
Lot, Double-Frontage. See Lot, Through Lot.
Lot Area. The total surface area (measured horizontally) within the boundary lines of a lot. Lot Consolidation. The reduction in the number of lots; i.e., the creation of one lot from two or more existing lots. Lot Coverage. The total area of a lot covered by building(s) or impervious surfaces, as provided by the applicable land use district development standards. Lot Line Adjustment. See Property Line Adjustment. MMain/Primary Building Entrance. A main entrance is the entrance to a building that most pedestrians are expected to use. Generally, each building has one main entrance, however, some buildings may have more than one primary entrance where pedestrian access is provided from a street sidewalk as well as a parking area internal to the site. In multi-tenant buildings, main entrances may open directly into the building's lobby or principal interior ground level circulation space. When a multi-tenant building does not have a lobby or common interior circulation space, each tenant's outside entrance is a main entrance. In single-tenant buildings, main entrances typically open directly into lobby, reception, or sales areas. Floor, Main Floor. Building floor closest to street level and within four (4) feet of finished grade. Major Remodeling. Projects where the floor area is being increased by 50 percent or more, or where the cost of the remodeling is greater than the assessed value of the existing improvements on the site. Assessed value is the market value shown on the applicable county assessment and taxation records for the current year. Manufactured Home/Dwelling. See Residential Structure Types. Maneuvering Area/Aisle. The driving area in a parking lot where motor vehicles are able to turn around and access parking or loading spaces. Manufactured Dwelling Park. Any place where four (4) or more manufactured dwellings are located within 500 feet of one another on a lot, tract or parcel of land under the same ownership, the primary purpose of which is to rent or lease space or keep space for rent or lease to any person for a charge or fee paid or to be paid for the rental or lease or use of facilities or to offer space free in connection with securing the trade or patronage of such person. “Manufactured dwelling park” does not include a lot or lots located within an approved subdivision being rented or leased for occupancy by no more than one (1) manufactured dwelling per lot. See also, ORS Chapter 446. Ministerial Decision. A routine administrative action or decision involving little or no discretion and not requiring public notice. See Section 5-4.1.020 (Type I Review).
Mitigation. To avoid, rectify, repair, or compensate for negative impacts or effects that result from other actions (e.g., improvements to a street may be required to mitigate for transportation impacts resulting from development.)
Mixed-Use. The combination on a site of residential uses with commercial (e.g., office, retail, or services), civic, or light industrial uses. Mobile Home Park. Two or more mobile homes that are located on a single site for 30 days or more, connected to a electric utility and city sewer and water systems, and intended for permanent residential use; does not include recreational vehicle parks or temporary medical hardship homes approved by the City, nor does it include sites where unoccupied mobile homes are offered for sale or lease. See also Recreational Vehicle Park. Mobile Home Space. The area occupied by a mobile home and its accessory uses and structures in a mobile home park. Motor Home. See Recreational Vehicle, under Vehicle Types. Motor Vehicle. See Vehicle Types. Multi-Dwelling Development or Multifamily Housing. See Residential Structure Types. Multi-Dwelling Structure. See Residential Structure Types. Multi-Use Pathway. See Walkway and Bikeway. NNatural Resource Areas/Natural Resources. See Environment-Related Definitions. Neighborhood. A residential area usually having distinguishing character or geography. Neighborhood Commercial. See Chapter 5-1.3 Use Categories, Commercial. Nonconforming Development. An element of a development, such as lot area, setback, height, lot coverage, landscaping, sidewalk, or parking area, or lack thereof, that was created in conformance with development regulations but which subsequently, due to a change in the zone or applicable Code standards, is no longer in conformance with the current applicable development regulations. See Chapter 5-5.2. Nonconforming Situation. A Nonconforming Development or Nonconforming Use. A situation may be nonconforming in more than one aspect. For example, a site may contain a nonconforming use and also have some nonconforming development. See also Nonconforming Development and Nonconforming Use. See Chapter 5-5.2.
Nonconforming Use. A use that was allowed by right when established or a use that obtained a required land use approval when established, but that subsequently, due to a change in the zone or zoning regulations, the use or the amount of floor area of the use is now prohibited in the zone. See Chapter 5-5.2. Non-native Invasive Plants. Plants listed by Oregon State University Extension Service, Grant County, or other government agency as non-native invasive plants in Oregon. OOff-street Parking. All off-street areas designed, constructed, used, or required or intended to be used for the parking of motor vehicles. See Chapter 5-3.3 for parking standards. On-street Parking. Parking in the street right-of-way, typically in parking lanes or bays. Parking may be “parallel” or “angled” in relation to the edge of the right-of-way or curb, as provided by applicable standards of the roadway authority. See Chapter 5-3.3 for parking standards. Open Space (public/common/private/active/passive). Land within a development that has been dedicated in common to the ownership within the development or to the public specifically for the purpose of providing places for recreation, conservation or other open space uses. See also, Common Area.
Orientation. To cause to face toward a particular point of reference (e.g., “A building oriented to the street”). See also, Pedestrian-Oriented Development. Outdoor Commercial Use. A use supporting a commercial activity that provides goods or services, either wholesale, retail or entertainment, where the amount of site area in outdoor use (e.g., storage of materials, display of merchandise, or entertainment) exceeds the total floor area of all buildings on the site. Examples of outdoor commercial uses include automobile sales or services, nurseries, lumber yards and equipment rental businesses, and outdoor amusement. Overlay Zone/District. Overlay zones impose and/or relax requirements of an underlying land use district, or base zone, where characteristics of the land or neighborhood, or the types of development planned for an area, require special regulations. See Article 5-2. Owner. The owner of the title to real property or the contract purchaser of real property of record, as shown on the latest assessment records in the Office of the County Assessor. Owner also includes a deed holder or contract purchaser whose name does not appear in the latest assessment records, but who presents to the City a copy of a deed or contract of sale signed by the owner of record. Ownership. An ownership is one or more contiguous lots that are owned by the same person, partnership, association, or corporation. Ownership also includes lots that are in common ownership but are separated by a right-of-way. See also, Lot and Site.
PParcel. A legally defined area of land created through a partition. Parking Area. A parking area is all the area devoted to the standing, maneuvering, and circulation of motor vehicles. Parking areas do not include driveways or areas devoted exclusively to non-passenger loading or fire apparatus lanes. See also, Driveway, Garage, Structured Parking, and Vehicle Areas. Parking Lot Perimeter. The boundary of a parking lot area that usually contains a landscaped buffer area. Parking Space. An improved space designed to provide standing area for a motor vehicle. See Chapter 5-3.3 for parking space standards. Partial Street/Half Street. See Transportation-Related Definitions. Parking Versus Storage. Parking is to leave a motor vehicle for a temporary time, no longer than 24 hours. Storage is to place or leave in a location for storage, maintenance, repair, future sale or rental, or future use more than 24 hours. See also, Exterior Display. Partition. To divide an area or tract of land into two or three parcels within a calendar year when such area or tract of land exists as a unit or contiguous units of land under single ownership at the beginning of such year. See ORS 92.010(8). Paved Area. See Development-Related definitions. Pedestrian Amenity(ies). See Development-Related definitions. Planter Strip. A landscape area for street trees and other plantings within the public right-of-way, usually a continuous planter area between the street and a sidewalk. See also, Tree Well. Plat. Diagrams, drawings and other writing containing all the descriptions, locations, dedications, provisions, and information concerning a land division. This term includes the State law definitions of “partition plat” and “subdivision plat.” See also, Chapter 5-4.3, Land Divisions. Plaza. An area generally open to the public on a controlled basis and used for passive recreational activities, informal public gathering, and relaxation. Plazas are paved areas typically provided with amenities, such as seating, drinking and ornamental fountains, art, trees, and landscaping for use by pedestrians. See also, Pedestrian Amenities (Development-Related definitions). Pocket Park. A small park, usually less than one-half acre typically accessed by foot or wheelchair, or bicycle. See also, Pedestrian Amenities (Development-Related definitions).
Practicable. Capable of being done after taking into consideration reasonable cost, existing technology, and logistics in light of overall project purposes.
Primary Structure. A structure or combination of structures of chief importance or function on a site. In general, the primary use of the site is carried out in a primary structure. The difference between a primary and accessory structure is determined by comparing the size, placement, similarity of design, use of common building materials, and the orientation of the structures on a site.
Primary Use. An activity or combination of activities of chief importance on the site. One of the main purposes for which the land or structures are intended, designed, or ordinarily used. A site may have more than one primary use. See also, Chapter 5-1.3 Land Use Categories.
Project. An existing or proposed use or development subject to one or more land use approvals.
Property Line Adjustment. The relocation of a single common property line between two abutting properties not resulting in an increase in the number of lots, pursuant to Chapter 5-4.3. See Figure below.
Property Line Adjustment
Public Access Easement. See Transportation-Related Definitions.
Public Safety Facility. A facility necessary to respond to an immediate hazard to the public health and safety, and that is owned, leased, or operated by a public agency. Public safety facilities include fire and police stations, flood control facilities, water towers and pump stations needed for emergency service, and emergency communication broadcast facilities.
Property Line: front, rear, interior side, street side. See Lot Line.
Public Improvements. Development of public infrastructure, as required by the City, County, Special District, or Road Authority, as applicable. See Chapter 5-3.4.
QQuasi-judicial. An action or decision that requires substantial discretion or judgment in applying the standards or criteria of this Code to the facts of a development or land use proposal, and requires a public hearing. See Article 5-4.
RRail Right-of-way. See Transportation-Related Definitions.
Recreation Camp.
Recreational Vehicle. See Vehicle Types. Recreational Vehicle Park. A commercial use providing space and facilities for motor homes or other recreational vehicles for recreational use or transient lodging. There is no minimum required stay in a recreational vehicle park, however, the maximum length of stay may be established by the City. Uses where unoccupied recreational vehicles are offered for sale or lease, or are stored, are not included as Recreational Vehicle Parks. See also Outdoor Storage and Display, and Mobile Home Park. Recycling Facility. Any property or establishment on which one (1) or more persons are engaged in collecting, sorting, storing, and distributing post-consumer goods or materials for reuse in the marketplace. Post-consumer goods do not include scrap or waste materials from manufacturing, industrial processing, or waste treatment facilities. Residence. Same as Dwelling. See Residential Structure Types.
Residential Structure Types
Review Body. The person or group who is assigned to make decisions on land use reviews, whether initially or on appeal. Review body includes the City Planning Official, Planning Commission, and the City Council. Right-Of-Way. See Transportation-Related Definitions. Riparian Areas. See Environment-Related Definitions. Roadway; Roadway Authority. See Transportation-Related Definitions. SSenior Housing. See Residential Structure types. Sensitive Lands. See Environment-Related Definitions. Setback/Setback Yard. The minimum distance required between a specified object, such as a building, and another point, measured from lot lines to a specified object. Typically, a setback refers to the minimum distance (yard dimension) from a building to a specified property line. Shared Driveway. See Transportation-Related definitions. Shared Parking. Required parking facilities for two or more uses, structures, or lots or parcels, which are satisfied jointly with the same facilities. See Chapter 5-3.3. Shopping Street. See Development-Related definitions.
Sign. Any outdoor device, or device visible from outdoors, providing identification, advertising or directional information for a specific business, group of businesses, service, product, brand, person, organization, place or building. Including in this definition of signs are: graphic devices such as logos, trademarks, and attention attracting objects such as wind-driven spinners and portable sign devices, logo sculpture and, banners, balloons, streamers, strobe lights, flags, inflatable structures, projected picture signs, holographic projection signs, laser projected designs/images/copy and other attention attracting media and devices. Single Room Occupancy Housing (SRO). See Residential Structure Types. Site. For land divisions, property line adjustments, and lot consolidations, the site is the lots, lots of record, parcels, or tracts proposed to be divided or reconfigured. For all other purposes, the site is an ownership except as follows:
Site Frontage. The part of a site that abuts a street. See also, Block Frontage. Site Design Review. A discretionary review that applies to all major developments except those specifically designated for Land Use Review. A development proposal is reviewed in light of the Chapter 5-2 Land Use District development standards and the design standards and public improvement requirements in Chapter 5-3. See Chapter 5-4.2 for review procedures. Specific Area Plan. An adopted plan for a sub-area of the City and/or Urban Growth Area providing a framework and standards for future land uses, densities, blocks, typical lot patterns, public improvements and streets, and site design; may also include architectural design guidelines or standards. Standards and Criteria. Both are code requirements for how to develop uses and structures on land. A standard is a quantitative requirement, or a qualitative requirement that is interpreted through one or more standards. (Example. Criterion: All developments subject to site design review shall comply with the Chapter 5-3.3 Parking. Standard: Medical and dental office uses must provide one vehicle parking space for each x square feet of gross floor area.) Steep Slopes. Slopes of [x] percent or greater. See Chapter 5-6.2 Rules of Measurement Storefront Character. See Development-Related definitions.
Stormwater Facility. See Development-Related definitions. Stormwater Management System. All components of stormwater facility (e.g., conveyance, detention/retention, treatment system or outfall). Story. That portion of a building included between the upper surface of any floor and the lower surface of the next floor above, or as otherwise provided by applicable building codes. Stream. See Environment-Related Definitions Street. See Transportation-Related Definitions. Street Connectivity. See Transportation-Related definitions.
Street-facing Facade/Wall. All the wall planes of a structure as seen from one side or view that are at an angle of 45 degrees or less from a street lot line. See Figure below. Street-facing Facade
Street Furniture/Furnishings. See Development-Related definitions.
Structure. See Development-Related Definitions.
Subdivision. To divide land into four (4) or more lots within a single calendar year. See also, Chapter 5-4.3, Land Divisions, and ORS 92.010(13).
Surface Water Management. Storm drainage facilities or practices conforming to an adopted surface or storm water management plan, or environmental/engineering best practices.
Swale. See Development-Related definitions. TTangent. Meeting a curve or surface in a single point. Terrace. A porch or promenade supported by columns, or a flat roof or other platform on a building. Through Lot. See Lot. Through Street. See Transportation-Related Definitions. Top of Bank. See Environment-Related Definitions. Topographical Constraint. Where existing slopes, landforms (e.g., streams, canals, rock outcropping, etc.) or existing manmade feature (e.g., embankment or berm) make conformance with a Code standard impracticable.
Tract. A piece of land within a platted subdivision reserved for open space, utility corridor, recreation facilities, sensitive lands, or other purpose; may be dedicated to a homeowner’s association or other entity for maintenance. Transportation-Related Definitions (See also, Section 5-3.4.010 for related standards.)
Travel Trailer. A vacation structure or self-propelled vehicle equipped with wheels for street or highway use; intended for human occupancy; equipped with plumbing, sink or toilets; used for vacation and recreational purposes; and not used as a residence. See ORS 446.003(5), (24); and see Recreational Vehicle. Travel Trailer/Recreational Vehicle Park/Campground. A lot or parcel on which two or more travel trailers, recreational vehicles, motor homes, tent trailers, tent sites, campers, and/or similar vehicles or devices, with or without a charge or fee.
Tree Well. A planter area cut out of a sidewalk within the street furnishing zone, planted with a street tree and including ground cover or a grate cover; typically used in commercial districts where on-street parking or pedestrian traffic makes the use of a planter strip impracticable. UUse (Land Use). The purpose for which land or a structure is designed, arranged, intended, occupied, or maintained. See also, Chapter 5-1.3, Use Categories. Utilities. For the purposes of this Code, there are two types of utilities: 1) Private: telephone, cable, natural gas, electric, telecommunication, and similar franchise facilities, any portion of which utilizes a public right-of-way; and 2) Public: water and wastewater conveyance and treatment facilities. VVacate Plat/Street. To abandon a subdivision or street right-of-way. For example, vacation of a public right-of-way that is not needed or cannot be used for a street or other public purpose. Vacation of a plat typically returns the property to the adjoining owners and restores it to an undivided condition and ownership. Vacation Home Rental. A commercial use of a single family or duplex dwelling unit where the unit is rented for periods of time of 28 or fewer consecutive days. Variance. An administrative or quasi-judicial decision to lessen or otherwise modify the requirements of this Code. See Chapter 5-5.1. Vehicle Areas. See Development-Related definitions.
Vehicle Types.
Vision Clearance Area. Those areas near intersections of roadways and motor vehicle access points where a clear field of vision is necessary for traffic safety and to maintain adequate sight distance. See standards in Chapter 5-3.1.020. WWaste Collection Areas. Waste collection areas include areas set aside or designed to be used for garbage collection and collection of materials for recycling. Waste collection areas include areas occupied by dumpsters and other solid waste receptacles. Window. For the purposes of this Code, a transparent or semi-transparent (not more than 50% opaque) glazing on a building facade; a window may be a display window (e.g., for merchandise, art, etc.) that is integral to a building design, but a display box mounted onto the exterior of a building is not a window for purposes of this Code. Wireless Communication Equipment. Cellular towers, antennae, monopoles, and related facilities used for radio signal transmission and receiving. X [Reserved]YYard. The area defined by setbacks (i.e., between the setback line and nearest property line). Z
Zero-lot Line House. A single-family detached dwelling with one "0" side yard setback. See also, Attached Dwelling types.
This section explains how various numerical standards in this Code are to be measured.
| Vertical Distance | X | 100 = Average Percent Slope |
| Horizontal Distance |
The floor area ratio shall be expressed as the total habitable floor area of the building divided by the total lot size. Floor area is measured at the interior of the enclosing walls. Basement floor space where the floor to ceiling height is less than seven (7) feet is not included in floor area.
Lot Coverage is the total ground area of a lot occupied by permanent impervious materials or improvements. Lot coverage includes the following materials and surfaces: asphalt, concrete, decomposed granite, compacted clay soil; mortared brick or stone; covered decks, balconies, carports, sheds and similar accessory structures; and other materials and surfaces that are predominately impervious and individually cover more than 121 square feet. The City Planning Official may determine that a material or structure meets or exempt from the criteria for impervious surfaces based on technical specifications from the manufacturer and acceptable performance guarantee from the property owner.
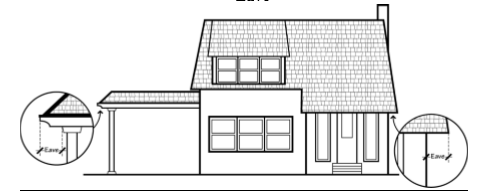
Building height is measured from the highest point of a flat or deck roof, or the midpoint of the main gable on a gable roof, to the finished grade at the highest point, except where this Code specifies a different reference point. Chimneys, bell towers, steeples, roof equipment, flag poles, and similar features that comprise less than ten percent (10%) of a structure’s roof area, extend not more than eight (8) feet above the highest point of the roof, and are not for human occupancy are exempt from the maximum building heights, provided that all applicable fire and building codes are met. Similar projections exceeding ten percent (10%) of the roof area or projecting more than eight (8) feet may be approved with a Conditional Use Permit pursuant to Chapter 5-4.4.
Corner clearance is measured from the closest edge of the pavement of the intersecting street to the closest edge of pavement of the connection along the traveled way.
The clear vision area, as provided in Chapter 5-3.1, is measured along the axis formed by the curbs where they meet the roadway and intersect. In the absence of a curb, the clear vision area is measured along the axis that would be formed by curbs upon full improvement of the street under the applicable roadway standards.
6 DEFINITIONS AND RULES OF MEASUREMENT
The purpose of Chapter 5-6.1 is to define terms that are used frequently in the City of John Day Development Code, to assist decision makers in interpreting and applying the Code. Some of the terms that are defined here may have different meanings in other communities.
The following definitions are organized alphabetically and some related terms are also grouped together and cross-referenced under group headings (e.g., Transportation-Related, Environment-Related, etc.).
A
Abutting. Contiguous or adjoining. Access. See Transportation-Related terms. Accessory. Secondary or incidental to a primary use or structure.
Accessory Dwelling. See Residential Structure Types. Accessory Parking Facility. A parking facility that provides parking for one or more primary use and may be located on or off the site of the use or uses to which it is accessory. Accessory Structure. A structure of secondary importance or function on a site. In general, the primary use of the site is not carried on in an accessory structure. Accessory structures are detached from the primary structure. Examples of accessory structures include but are not limited to: garages, decks, fences, arbors, gazebos, heat pumps, workshops and other structures. See also Primary Structure. Accessory Use. A use or activity that is a subordinate part of a primary use and that is clearly incidental to a primary use on a site. See also Primary Structure. Adjacent. Abutting or located directly across a street right-of-way or easement. Administrative. A discretionary action or permit decision made without a public hearing, but requiring public notification and an opportunity for appeal. Adverse Impact or Effect. Negative effect that can be measured (e.g., noise, air pollution, vibration, dust, property values, etc.). Affordable. Housing affordable to a certain percentage of the population earning a specified level of income and spending no more than 30 percent of their income on housing expenses. For more information, contact the federal Department of Housing and Urban Development and the Oregon Department of Housing and Community Services. Airport-Related Definitions. The airport-related definitions of the Oregon Department of Aviation’s Land Use Compatibility Handbook are hereby incorporated by reference. Alley. See Transportation-Related definitions. Alteration. See Development-Related definitions. Ambient. Normal or background environmental conditions, as in the level of light, dust or noise. Applicant. A person who applies for a land use review. An applicant can be the owner of the property, a contract purchaser, or someone who is legally authorized to represent the owner, such as a builder, developer, contract purchaser, consultant, architect, or similar individual. Arterial. See Transportation-Related definitions. Attached House (Townhouse or Rowhouse). See Residential Structure Types. Attached Structure. See Development-Related definitions.
BBed and Breakfast Inn. Any establishment located in a structure designed for a single family residence and structures appurtenant thereto, regardless of whether the owner or operator of the establishment resides in any of the structures, that: (a) Has more than two rooms for rent on a daily basis to the public; and (b) Offers a breakfast meal as part of the cost of the room. Berm. A small man-made rise or hill in a landscape, which is, intended to buffer or visually screen certain developments, such as parking areas. Bikeway. See Transportation-Related definitions. Block. All of the property bounded by streets, rights-of-way (pedestrian or vehicle ways), water features, or any combination thereof, but is not divided or separated in any way by streets or water features. Block Face/Frontage. All of the property fronting on one side of a street that is between intersecting or intercepting streets, or that is between a street and a water feature, or end of a dead end street. An intercepting street determines the boundary of the block frontage only on the side of the street that it intercepts. See Figure.
Block Frontage
Bollard. A post of metal, wood or masonry that is used to separate or direct traffic (vehicles, pedestrians and/or bicycles). Bollards may contain sidewalk or pathway lighting. Building. See adopted Building Code. Building Official. The person who enforces the building ordinances and regulations for the City, and other ordinances and regulations as assigned. Build-to Line. A maximum front or street yard setback, which is typically required along commercial street frontages to promote a storefront character and pedestrian-oriented design.
C
Canopy. A permanent roofed unenclosed structure that may be free-standing or be partially attached to a building, for the purpose of providing shelter; typically used for sheltering patrons on foot and/or in motor vehicles; does not include a completely enclosed structure. See also, Carport (below), and Tree Canopy, under Environment-Related definitions. Capacity. Maximum holding or service ability, as used for transportation, utilities, parks and other public facilities. See also, definition of “Occupancy” in applicable building codes. Carport. A stationary structure consisting of a roof, its supports, not more than one wall or storage cabinets substituting for a wall, used to shelter motor vehicles, recreational vehicles, or boats; does not include temporary shelters or canopies not affixed to a permanent foundation per applicable building codes. Centerline Radius. The radius of a centerline of a street right-of-way. Certificate of Occupancy. A certificate of occupancy or a certificate of inspection issued by the Building Official at the completion of a building permit or change of occupancy. Change of Use. Change in the primary type of use on a site. Child Care. Facilities that provide care and supervision of minor children for periods of less than 24 hours. “Family child care providers” provide care for not more than 16 children in a home. See ORS 657A.440(4) for applicable requirements.
City. The City of John Day, Oregon. Clear and Objective. Decision criteria and standards that do not involve substantial discretion or individual judgment in their application. Clearing (as in clearing and grading). See Development-Related Definitions. Club. Any organization, group, or association supported by the members thereof, the purpose of which is to render a service customarily rendered for members and their guests but shall not include any organization, group, or association, the chief activity of which is to render a service customarily carried on as a business. Collector. See Transportation-Related definitions. Commission. The John Day Planning Commission. Commercial. Land use involving buying/selling of goods or services as the primary activity. Common Area. Land commonly owned to include open space, landscaping or recreation facilities (e.g., may be managed by a homeowners' association). Comprehensive Plan. The current adopted Comprehensive Plan of the City of John Day. Conditional Use. A use that requires a Conditional Use Permit. See Chapter 5-4.4. Condominium. Ownership of a single unit in a multi-unit structure that includes common areas and facilities; includes both residential and commercial condominiums. See ORS 100 for applicable requirements. Conservation Easement. See Environment-Related definitions. Corner lot. See Lot, Corner lot. Corner Radius. The radius of a street corner, as measured around the curb or edge of pavement. Cottage. See Residential Structure types. Council. The City Council of John Day, Oregon. Courtyard. See Development-Related definitions. Crown Cover. The area directly beneath the crown and within the drip line of a tree or shrub. The crown consists of the above ground branches, stems, and leaves. DDays. Calendar days, unless specifically stated as working days. Working days include Monday through Friday, excluding Federal holidays. Dead-End Street. See Transportation-Related Definitions. Dedication. The designation of land by its owner for any public use as shown on a subdivision plat or deed. The term may also be used for dedications to a private homeowners' association. Density(ies). A measurement of the number of dwelling units in relationship to a specified amount of land. As used in this Code, density is determined based on the gross parcel or lot area, which includes land that will be dedicated as right-of-way and land that will be reserved as open space through the development process. It does not include land previously dedicated as right-of-way. Density is a measurement used generally for residential uses. Development-Related Definitions
Disabled Person. For the purposes of this Code, a disabled person is a person who has a condition of physical or mental disability, which substantially limits one, or more major life activities as stated in Section 504 of the Federal Rehabilitation Act of 1973 and state law.
Discontinued Use. A use that physically left the land it was on, a permitted use that ceased, or a use terminated at the end of a lease or contract. See Chapter 5.2, Non-Conforming Uses and Developments. A use is considered temporarily discontinued during the first year (12 months) after it ceases, after which it is considered permanently discontinued. Discretionary. A permit action or decision that involves substantial judgment or discretion. Disturbance Area. See Environment-Related Definitions.
Drainage way. See Environment-Related Definitions. Drip-line. See Environment-Related definitions. Drive-through/Drive-up Facility. A facility or structure that is designed to allow drivers to remain in their vehicles before and during an activity on the site. Drive-through facilities are a type of site development that is usually found in conjunction with a Quick Vehicle Servicing use or a Retail Sales and Service use. Drive-through/drive-up facilities also include facilities designed for the rapid servicing of vehicles, where the drivers may or may not remain in their vehicles, but where the drivers usually either perform the service for themselves, or wait on the site for the service to be rendered. Drive-through facilities may serve the primary use of the site or may serve accessory uses. Examples are drive-up windows; automatic teller machines; coffee kiosks and similar vendors; menu boards; order boards or boxes; gas pump islands; car wash facilities; auto service facilities, such as air compressor, water, and windshield washing stations; quick-lube or quick-oil change facilities; and drive-in theaters. All driveways queuing and waiting areas associated with a drive-through/drive-up facility are similarly regulated as part of such facility. Driveway. See Development-Related Definitions. Driveway Apron/Approach. See Development-Related Definitions. Duplex. See Residential Structure Types. Dwelling Unit. See Residential Structure Types. EEasement. A grant of rights by a property owner that allows others to use the owner’s land for a specific purpose, such as access, or to locate utilities. Recorded and on record at Grant County. Eave. See Development-Related Definitions. Elevation. Height in feet and inches above a specified datum. Elevation, Building. Scaled drawing of the outside wall of a building or structure, from grade to roof ridgeline, typically specifying materials, color, and dimensions. Emergency Apparatus Lane or Fire Lane. See Development-Related definitions and applicable Fire Code. Environment-Related Definitions.
Evidence. Application materials, plans, data, testimony and other factual information used to demonstrate compliance or non-compliance with a code standard or criterion. Excavating or Filling. The removal, placement, or replacement of earth, concrete, asphalt, and similar non-decomposable materials whether permanent or temporary in nature. Excavating or filling does not include the movement of earth or placement of gravel, asphalt, or other paving materials that is done in conjunction with road improvements. It does not include the excavation of mineral or aggregate resources. Excavating or filling includes the terms grading, preloading, surcharging, and stockpiling. Exterior Display. The outdoor display of products, vehicles, equipment, and machinery for sale or lease. Exterior display functions as an outdoor showroom for customers to examine and compare products. The display area does not have to be visible to the street. Exterior display does not include storage of goods placed or parked outside, if the goods are not examined and compared by customers in such location. It does not include damaged or inoperable vehicles, vehicles or equipment being serviced, bulk goods and materials, and other similar products. Exterior display does not include car and boat sales and/or leasing when such vehicles are not accessible to customers to inspect and compare; this situation is considered exterior storage. Examples of uses that often have exterior display are car and boat sales and leasing, and plant nurseries. See also, Exterior Work Activities and Exterior Storage.
Exterior Improvements. See Development-Related Definitions. Exterior Storage. Exterior storage includes the outdoor storage of goods exclusive of outdoor displays for sale or rent. The goods may be for sale or lease, but if so, the storage area is generally not for the purpose of inspection or comparison of goods by customers. Exterior storage includes the storage of raw or finished goods (packaged or bulk), including gases, oil, chemicals, gravel; building materials, packing materials; salvage goods; machinery, tools, and equipment; vehicles that are for sale, lease or rent, which are not accessible to the customer to inspect or compare; vehicles that have been unloaded and are waiting transport to off-site locations; vehicles that have been towed and are being kept in an impound lot; and other similar items. The storage of recreational vehicles outdoors is also considered exterior storage. Damaged or inoperable vehicles, or vehicles that have missing parts, which are kept outside are also included as exterior storage. Examples of uses that often have exterior storage are lumber yards, wrecking yards, tool and equipment rental, bark chip and gravel sales, car dealerships or car rental establishments, and port facilities. See also, Exterior Display and Exterior Work Activities.
Exterior Work Activities. Exterior work activities include the outdoor processing, assembly, or fabrication of goods; the maintenance, repair, and salvage of vehicles and equipment; and other similar activities that generally have an industrial orientation. Exterior work activities do not include normal pick-up and deliveries to a site, parking, excavation and fills, exterior eating areas, outdoor recreation, or outdoor markets. See Exterior Display and Exterior Storage. FFacade. See Development-Related definitions. Family Day Care. See Child Care Center, Family Child Care. Farming or Farm Use. As used in this Code, “agriculture” is the same as “farm use”. [See ORS 215.203(2)(a).] Includes utilization of land to raise, harvest, or sell crops; feed, breed, manage, and sell livestock, poultry, fur-bearing animals, honeybees, or their produce; dairy and sell dairy products; or any other agricultural or horticultural use, animal husbandry, timber agricultural use, or combination thereof. Farm uses include preparation or processing and storage of products raised on such land, but do not include construction or use of dwellings and other buildings customarily provided in conjunction with farm uses. Final Plat. The diagrams, drawings, and other writing containing all the descriptions, locations, dedications, provisions and information concerning a land division, pursuant to ORS 92 and Chapter 5-4.3 of this Code. Flag Lot. See Lot. Flood Hazard Area. See Chapter 5-2.9 Flood Plain overlay zone. Floor Area; Main Floor. See Development-Related definitions. Foot-candle. A unit of illumination (light standards), equal to one (1) lumen per square foot, or the amount of light from a source of one candela directly thrown on a square foot of surface at a distance of one (1) foot. Frontage. The dimension of a property line abutting a public or private street. Frontage Street or Road. A minor street that parallels an arterial street or highway in order to provide access to abutting properties and minimize direct access onto the arterial or highway. Functional Classification. The classification given to streets by the road authority (e.g., “local/collector/arterial”). See Transportation-Related definitions, and Section 5-3.4.010 for street standards. Future Division Plan or Future Development Plan. A document that shows lot, tract and right-of-way boundaries for all potential future phases of a land division. The plan is not binding on the City or the applicant. The purpose of the plan is to document that the design of the first phase of the plan does not preclude future phases or future development of adjacent properties from meeting City standards. GGarage. A covered permanent structure designed to provide shelter for vehicles, and which is accessory to a use in these structure types: houses, attached houses, duplexes, mobile homes, or houseboats. Carports are considered garages. Floor area adjacent to the space designed to provide shelter for vehicles, if not entirely separated from the garage area by floor-to-ceiling walls, is considered part of the garage. A garage may be attached to or detached from another structure. See also Structured Parking. Grade. The lowest point of elevation of the finished surface of the ground, paving, or sidewalk within the area between the building and the property line or, when the property line is more than 5 feet from the building, between the building and a line 5 feet from the building. This is the definition used in the Oregon Structural Specialty Code (the International Building Code as amended by the State of Oregon.) Grading. See Development-Related Definitions. Ground Cover. Living or processed plant material (e.g., mulch, bark chips), river rock and cinders used for aesthetic purposes and to prevent erosion (i.e., cover bare ground) in designated landscape areas. See Chapter 5-3.2, Landscaping. Group Living Structure. See Residential Structure Types. HHardscape. Non-vegetative landscape materials or installations, including pathways, decorative pavers, benches, drinking fountains, arbors, pergolas, playgrounds, plazas, and similar amenities. Hazardous Substances. Any substance, material, or waste listed below:
Historic Resource-Related Definitions. See Historic-Cultural Resources provisions. Home Occupation, Home Occupation Site. A business activity that is carried out on the same site as a dwelling unit, and which is accessory to the Household Living use on the site, subject to the provisions of Chapter 5-2.2 (Residential Districts) and Section 5-4.9.030 (Home Occupation Permits). Hotel/Motel. A building or portion thereof designed and used for occupancy of transient individuals lodged with or without meals for a continuous period not to exceed 29 days. (See ORS 446.310.) House. See Residential Structure Types. Household. One or more persons related by blood, marriage, civil union, legal adoption or guardianship, plus not more than 5 additional persons, who live together in one dwelling unit; or one or more handicapped persons as defined in the Fair Housing Amendments Act of 1988, plus not more than 5 additional persons, who live together in one dwelling unit. IImpervious Surface. Surface area that does not allow for water infiltration, or has a runoff coefficient of 0.90 or more (e.g., non-permeable pavement, solid rock roofs, foundations, underground tanks and vaults, and similar areas). Incidental and Subordinate to. Secondary to, and less apparent, than the primary use or other portion of the development. Infill. The development of vacant, bypassed lands located in an area that is predominately developed at densities/land use intensities allowed by zoning. JJunk Yard.
KKennel. Any lot or premises where three (3) or more dogs or cats aged 6 months or older are boarded or bred for compensation. Establishments where animals are offered for sale as the primary use, such as pet stores, are not classified as kennels. LLand Division. The process of dividing land to create parcels or lots. See Chapter 5-4.3. Landing (stairs). A level part of a staircase, usually at the end of a flight of stairs. Landscaping. Any combination of living plants such as trees, shrubs, plants, vegetative ground cover or turf grasses, and may include structural features such as walkways, fences, benches, plazas, works of art, reflective pools, fountains or the like. Also includes irrigation systems, mulches, topsoil, and re-vegetation or the preservation, protection and replacement of trees. Land Use. The activity or activities that occur on a piece of land. Activities may be individually identified as primary or accessory uses. See also, Chapter 5-1.3 Use Categories. Land Use Approval. A land use decision for approval or approval with conditions under Article 4; includes any time limits or other restrictions that may apply to the land use decision. Land Use District. As used in this code, a land use district is the same as a zoning district. Land Use Review. An application for land use approval or the review of such application; typically limited to determining conformance with standards of the applicable land use district and does not include site design review, conditional use permit, or land division approval.
Lane, Mid-Block. See Transportation-Related definitions. Living Area. The habitable floor area of a residential structure conforming to applicable building codes; typically does not include garage area, and attic and basement areas with substandard ceiling height or substandard egress. Legislative. A legislative action or decision is the making of law, as opposed to the application of existing law to a particular use (e.g., adoption of, or amendment to, a comprehensive plan or development regulation). See also, Chapter 5-4.1.050 (Type IV Review). Light Manufacture. See Chapter 5-1.3, Use Categories. Livestock. Domestic animal types customarily raised or kept on farms. See Agriculture. Local Improvement District (LID). A small public district formed for the purpose of financing local improvements (paving of streets, construction of sidewalks, street lighting, water mains, storm sewers, parks, etc.) within a zone of benefit, usually assessed against abutting properties. Property owners within the LID are assessed for the cost of the improvements in accordance with ORS 223.387-223.485. Loading Area. The area available for the maneuvering and standing of vehicles engaged in delivering and loading goods, freight, or other articles. See also, Chapter 5-3.3, Parking and Loading. Longest Street-Facing Wall. The longest wall that faces a street. If two or more street-facing walls are of equal length, then the applicant chooses which is to be the longest street-facing wall for purposes of applying regulations of the Development Code. See also, Facade. Lot. A lot is a legally defined piece of land other than a tract that is the result of a land division. The following definitions for “lot” apply to the State definition of both lot, (result of subdividing), and parcel, (result of partitioning). See also, Ownership and Site.
Lot Lines/Property Lines. The property lines along the edge of a lot or site.
Lot, Double-Frontage. See Lot, Through Lot.
Lot Area. The total surface area (measured horizontally) within the boundary lines of a lot. Lot Consolidation. The reduction in the number of lots; i.e., the creation of one lot from two or more existing lots. Lot Coverage. The total area of a lot covered by building(s) or impervious surfaces, as provided by the applicable land use district development standards. Lot Line Adjustment. See Property Line Adjustment. MMain/Primary Building Entrance. A main entrance is the entrance to a building that most pedestrians are expected to use. Generally, each building has one main entrance, however, some buildings may have more than one primary entrance where pedestrian access is provided from a street sidewalk as well as a parking area internal to the site. In multi-tenant buildings, main entrances may open directly into the building's lobby or principal interior ground level circulation space. When a multi-tenant building does not have a lobby or common interior circulation space, each tenant's outside entrance is a main entrance. In single-tenant buildings, main entrances typically open directly into lobby, reception, or sales areas. Floor, Main Floor. Building floor closest to street level and within four (4) feet of finished grade. Major Remodeling. Projects where the floor area is being increased by 50 percent or more, or where the cost of the remodeling is greater than the assessed value of the existing improvements on the site. Assessed value is the market value shown on the applicable county assessment and taxation records for the current year. Manufactured Home/Dwelling. See Residential Structure Types. Maneuvering Area/Aisle. The driving area in a parking lot where motor vehicles are able to turn around and access parking or loading spaces. Manufactured Dwelling Park. Any place where four (4) or more manufactured dwellings are located within 500 feet of one another on a lot, tract or parcel of land under the same ownership, the primary purpose of which is to rent or lease space or keep space for rent or lease to any person for a charge or fee paid or to be paid for the rental or lease or use of facilities or to offer space free in connection with securing the trade or patronage of such person. “Manufactured dwelling park” does not include a lot or lots located within an approved subdivision being rented or leased for occupancy by no more than one (1) manufactured dwelling per lot. See also, ORS Chapter 446. Ministerial Decision. A routine administrative action or decision involving little or no discretion and not requiring public notice. See Section 5-4.1.020 (Type I Review).
Mitigation. To avoid, rectify, repair, or compensate for negative impacts or effects that result from other actions (e.g., improvements to a street may be required to mitigate for transportation impacts resulting from development.)
Mixed-Use. The combination on a site of residential uses with commercial (e.g., office, retail, or services), civic, or light industrial uses. Mobile Home Park. Two or more mobile homes that are located on a single site for 30 days or more, connected to a electric utility and city sewer and water systems, and intended for permanent residential use; does not include recreational vehicle parks or temporary medical hardship homes approved by the City, nor does it include sites where unoccupied mobile homes are offered for sale or lease. See also Recreational Vehicle Park. Mobile Home Space. The area occupied by a mobile home and its accessory uses and structures in a mobile home park. Motor Home. See Recreational Vehicle, under Vehicle Types. Motor Vehicle. See Vehicle Types. Multi-Dwelling Development or Multifamily Housing. See Residential Structure Types. Multi-Dwelling Structure. See Residential Structure Types. Multi-Use Pathway. See Walkway and Bikeway. NNatural Resource Areas/Natural Resources. See Environment-Related Definitions. Neighborhood. A residential area usually having distinguishing character or geography. Neighborhood Commercial. See Chapter 5-1.3 Use Categories, Commercial. Nonconforming Development. An element of a development, such as lot area, setback, height, lot coverage, landscaping, sidewalk, or parking area, or lack thereof, that was created in conformance with development regulations but which subsequently, due to a change in the zone or applicable Code standards, is no longer in conformance with the current applicable development regulations. See Chapter 5-5.2. Nonconforming Situation. A Nonconforming Development or Nonconforming Use. A situation may be nonconforming in more than one aspect. For example, a site may contain a nonconforming use and also have some nonconforming development. See also Nonconforming Development and Nonconforming Use. See Chapter 5-5.2.
Nonconforming Use. A use that was allowed by right when established or a use that obtained a required land use approval when established, but that subsequently, due to a change in the zone or zoning regulations, the use or the amount of floor area of the use is now prohibited in the zone. See Chapter 5-5.2. Non-native Invasive Plants. Plants listed by Oregon State University Extension Service, Grant County, or other government agency as non-native invasive plants in Oregon. OOff-street Parking. All off-street areas designed, constructed, used, or required or intended to be used for the parking of motor vehicles. See Chapter 5-3.3 for parking standards. On-street Parking. Parking in the street right-of-way, typically in parking lanes or bays. Parking may be “parallel” or “angled” in relation to the edge of the right-of-way or curb, as provided by applicable standards of the roadway authority. See Chapter 5-3.3 for parking standards. Open Space (public/common/private/active/passive). Land within a development that has been dedicated in common to the ownership within the development or to the public specifically for the purpose of providing places for recreation, conservation or other open space uses. See also, Common Area.
Orientation. To cause to face toward a particular point of reference (e.g., “A building oriented to the street”). See also, Pedestrian-Oriented Development. Outdoor Commercial Use. A use supporting a commercial activity that provides goods or services, either wholesale, retail or entertainment, where the amount of site area in outdoor use (e.g., storage of materials, display of merchandise, or entertainment) exceeds the total floor area of all buildings on the site. Examples of outdoor commercial uses include automobile sales or services, nurseries, lumber yards and equipment rental businesses, and outdoor amusement. Overlay Zone/District. Overlay zones impose and/or relax requirements of an underlying land use district, or base zone, where characteristics of the land or neighborhood, or the types of development planned for an area, require special regulations. See Article 5-2. Owner. The owner of the title to real property or the contract purchaser of real property of record, as shown on the latest assessment records in the Office of the County Assessor. Owner also includes a deed holder or contract purchaser whose name does not appear in the latest assessment records, but who presents to the City a copy of a deed or contract of sale signed by the owner of record. Ownership. An ownership is one or more contiguous lots that are owned by the same person, partnership, association, or corporation. Ownership also includes lots that are in common ownership but are separated by a right-of-way. See also, Lot and Site.
PParcel. A legally defined area of land created through a partition. Parking Area. A parking area is all the area devoted to the standing, maneuvering, and circulation of motor vehicles. Parking areas do not include driveways or areas devoted exclusively to non-passenger loading or fire apparatus lanes. See also, Driveway, Garage, Structured Parking, and Vehicle Areas. Parking Lot Perimeter. The boundary of a parking lot area that usually contains a landscaped buffer area. Parking Space. An improved space designed to provide standing area for a motor vehicle. See Chapter 5-3.3 for parking space standards. Partial Street/Half Street. See Transportation-Related Definitions. Parking Versus Storage. Parking is to leave a motor vehicle for a temporary time, no longer than 24 hours. Storage is to place or leave in a location for storage, maintenance, repair, future sale or rental, or future use more than 24 hours. See also, Exterior Display. Partition. To divide an area or tract of land into two or three parcels within a calendar year when such area or tract of land exists as a unit or contiguous units of land under single ownership at the beginning of such year. See ORS 92.010(8). Paved Area. See Development-Related definitions. Pedestrian Amenity(ies). See Development-Related definitions. Planter Strip. A landscape area for street trees and other plantings within the public right-of-way, usually a continuous planter area between the street and a sidewalk. See also, Tree Well. Plat. Diagrams, drawings and other writing containing all the descriptions, locations, dedications, provisions, and information concerning a land division. This term includes the State law definitions of “partition plat” and “subdivision plat.” See also, Chapter 5-4.3, Land Divisions. Plaza. An area generally open to the public on a controlled basis and used for passive recreational activities, informal public gathering, and relaxation. Plazas are paved areas typically provided with amenities, such as seating, drinking and ornamental fountains, art, trees, and landscaping for use by pedestrians. See also, Pedestrian Amenities (Development-Related definitions). Pocket Park. A small park, usually less than one-half acre typically accessed by foot or wheelchair, or bicycle. See also, Pedestrian Amenities (Development-Related definitions).
Practicable. Capable of being done after taking into consideration reasonable cost, existing technology, and logistics in light of overall project purposes.
Primary Structure. A structure or combination of structures of chief importance or function on a site. In general, the primary use of the site is carried out in a primary structure. The difference between a primary and accessory structure is determined by comparing the size, placement, similarity of design, use of common building materials, and the orientation of the structures on a site.
Primary Use. An activity or combination of activities of chief importance on the site. One of the main purposes for which the land or structures are intended, designed, or ordinarily used. A site may have more than one primary use. See also, Chapter 5-1.3 Land Use Categories.
Project. An existing or proposed use or development subject to one or more land use approvals.
Property Line Adjustment. The relocation of a single common property line between two abutting properties not resulting in an increase in the number of lots, pursuant to Chapter 5-4.3. See Figure below.
Property Line Adjustment
Public Access Easement. See Transportation-Related Definitions.
Public Safety Facility. A facility necessary to respond to an immediate hazard to the public health and safety, and that is owned, leased, or operated by a public agency. Public safety facilities include fire and police stations, flood control facilities, water towers and pump stations needed for emergency service, and emergency communication broadcast facilities.
Property Line: front, rear, interior side, street side. See Lot Line.
Public Improvements. Development of public infrastructure, as required by the City, County, Special District, or Road Authority, as applicable. See Chapter 5-3.4.
QQuasi-judicial. An action or decision that requires substantial discretion or judgment in applying the standards or criteria of this Code to the facts of a development or land use proposal, and requires a public hearing. See Article 5-4.
RRail Right-of-way. See Transportation-Related Definitions.
Recreation Camp.
Recreational Vehicle. See Vehicle Types. Recreational Vehicle Park. A commercial use providing space and facilities for motor homes or other recreational vehicles for recreational use or transient lodging. There is no minimum required stay in a recreational vehicle park, however, the maximum length of stay may be established by the City. Uses where unoccupied recreational vehicles are offered for sale or lease, or are stored, are not included as Recreational Vehicle Parks. See also Outdoor Storage and Display, and Mobile Home Park. Recycling Facility. Any property or establishment on which one (1) or more persons are engaged in collecting, sorting, storing, and distributing post-consumer goods or materials for reuse in the marketplace. Post-consumer goods do not include scrap or waste materials from manufacturing, industrial processing, or waste treatment facilities. Residence. Same as Dwelling. See Residential Structure Types.
Residential Structure Types
Review Body. The person or group who is assigned to make decisions on land use reviews, whether initially or on appeal. Review body includes the City Planning Official, Planning Commission, and the City Council. Right-Of-Way. See Transportation-Related Definitions. Riparian Areas. See Environment-Related Definitions. Roadway; Roadway Authority. See Transportation-Related Definitions. SSenior Housing. See Residential Structure types. Sensitive Lands. See Environment-Related Definitions. Setback/Setback Yard. The minimum distance required between a specified object, such as a building, and another point, measured from lot lines to a specified object. Typically, a setback refers to the minimum distance (yard dimension) from a building to a specified property line. Shared Driveway. See Transportation-Related definitions. Shared Parking. Required parking facilities for two or more uses, structures, or lots or parcels, which are satisfied jointly with the same facilities. See Chapter 5-3.3. Shopping Street. See Development-Related definitions.
Sign. Any outdoor device, or device visible from outdoors, providing identification, advertising or directional information for a specific business, group of businesses, service, product, brand, person, organization, place or building. Including in this definition of signs are: graphic devices such as logos, trademarks, and attention attracting objects such as wind-driven spinners and portable sign devices, logo sculpture and, banners, balloons, streamers, strobe lights, flags, inflatable structures, projected picture signs, holographic projection signs, laser projected designs/images/copy and other attention attracting media and devices. Single Room Occupancy Housing (SRO). See Residential Structure Types. Site. For land divisions, property line adjustments, and lot consolidations, the site is the lots, lots of record, parcels, or tracts proposed to be divided or reconfigured. For all other purposes, the site is an ownership except as follows:
Site Frontage. The part of a site that abuts a street. See also, Block Frontage. Site Design Review. A discretionary review that applies to all major developments except those specifically designated for Land Use Review. A development proposal is reviewed in light of the Chapter 5-2 Land Use District development standards and the design standards and public improvement requirements in Chapter 5-3. See Chapter 5-4.2 for review procedures. Specific Area Plan. An adopted plan for a sub-area of the City and/or Urban Growth Area providing a framework and standards for future land uses, densities, blocks, typical lot patterns, public improvements and streets, and site design; may also include architectural design guidelines or standards. Standards and Criteria. Both are code requirements for how to develop uses and structures on land. A standard is a quantitative requirement, or a qualitative requirement that is interpreted through one or more standards. (Example. Criterion: All developments subject to site design review shall comply with the Chapter 5-3.3 Parking. Standard: Medical and dental office uses must provide one vehicle parking space for each x square feet of gross floor area.) Steep Slopes. Slopes of [x] percent or greater. See Chapter 5-6.2 Rules of Measurement Storefront Character. See Development-Related definitions.
Stormwater Facility. See Development-Related definitions. Stormwater Management System. All components of stormwater facility (e.g., conveyance, detention/retention, treatment system or outfall). Story. That portion of a building included between the upper surface of any floor and the lower surface of the next floor above, or as otherwise provided by applicable building codes. Stream. See Environment-Related Definitions Street. See Transportation-Related Definitions. Street Connectivity. See Transportation-Related definitions.
Street-facing Facade/Wall. All the wall planes of a structure as seen from one side or view that are at an angle of 45 degrees or less from a street lot line. See Figure below. Street-facing Facade
Street Furniture/Furnishings. See Development-Related definitions.
Structure. See Development-Related Definitions.
Subdivision. To divide land into four (4) or more lots within a single calendar year. See also, Chapter 5-4.3, Land Divisions, and ORS 92.010(13).
Surface Water Management. Storm drainage facilities or practices conforming to an adopted surface or storm water management plan, or environmental/engineering best practices.
Swale. See Development-Related definitions. TTangent. Meeting a curve or surface in a single point. Terrace. A porch or promenade supported by columns, or a flat roof or other platform on a building. Through Lot. See Lot. Through Street. See Transportation-Related Definitions. Top of Bank. See Environment-Related Definitions. Topographical Constraint. Where existing slopes, landforms (e.g., streams, canals, rock outcropping, etc.) or existing manmade feature (e.g., embankment or berm) make conformance with a Code standard impracticable.
Tract. A piece of land within a platted subdivision reserved for open space, utility corridor, recreation facilities, sensitive lands, or other purpose; may be dedicated to a homeowner’s association or other entity for maintenance. Transportation-Related Definitions (See also, Section 5-3.4.010 for related standards.)
Travel Trailer. A vacation structure or self-propelled vehicle equipped with wheels for street or highway use; intended for human occupancy; equipped with plumbing, sink or toilets; used for vacation and recreational purposes; and not used as a residence. See ORS 446.003(5), (24); and see Recreational Vehicle. Travel Trailer/Recreational Vehicle Park/Campground. A lot or parcel on which two or more travel trailers, recreational vehicles, motor homes, tent trailers, tent sites, campers, and/or similar vehicles or devices, with or without a charge or fee.
Tree Well. A planter area cut out of a sidewalk within the street furnishing zone, planted with a street tree and including ground cover or a grate cover; typically used in commercial districts where on-street parking or pedestrian traffic makes the use of a planter strip impracticable. UUse (Land Use). The purpose for which land or a structure is designed, arranged, intended, occupied, or maintained. See also, Chapter 5-1.3, Use Categories. Utilities. For the purposes of this Code, there are two types of utilities: 1) Private: telephone, cable, natural gas, electric, telecommunication, and similar franchise facilities, any portion of which utilizes a public right-of-way; and 2) Public: water and wastewater conveyance and treatment facilities. VVacate Plat/Street. To abandon a subdivision or street right-of-way. For example, vacation of a public right-of-way that is not needed or cannot be used for a street or other public purpose. Vacation of a plat typically returns the property to the adjoining owners and restores it to an undivided condition and ownership. Vacation Home Rental. A commercial use of a single family or duplex dwelling unit where the unit is rented for periods of time of 28 or fewer consecutive days. Variance. An administrative or quasi-judicial decision to lessen or otherwise modify the requirements of this Code. See Chapter 5-5.1. Vehicle Areas. See Development-Related definitions.
Vehicle Types.
Vision Clearance Area. Those areas near intersections of roadways and motor vehicle access points where a clear field of vision is necessary for traffic safety and to maintain adequate sight distance. See standards in Chapter 5-3.1.020. WWaste Collection Areas. Waste collection areas include areas set aside or designed to be used for garbage collection and collection of materials for recycling. Waste collection areas include areas occupied by dumpsters and other solid waste receptacles. Window. For the purposes of this Code, a transparent or semi-transparent (not more than 50% opaque) glazing on a building facade; a window may be a display window (e.g., for merchandise, art, etc.) that is integral to a building design, but a display box mounted onto the exterior of a building is not a window for purposes of this Code. Wireless Communication Equipment. Cellular towers, antennae, monopoles, and related facilities used for radio signal transmission and receiving. X [Reserved]YYard. The area defined by setbacks (i.e., between the setback line and nearest property line). Z
Zero-lot Line House. A single-family detached dwelling with one "0" side yard setback. See also, Attached Dwelling types.
This section explains how various numerical standards in this Code are to be measured.
| Vertical Distance | X | 100 = Average Percent Slope |
| Horizontal Distance |
The floor area ratio shall be expressed as the total habitable floor area of the building divided by the total lot size. Floor area is measured at the interior of the enclosing walls. Basement floor space where the floor to ceiling height is less than seven (7) feet is not included in floor area.
Lot Coverage is the total ground area of a lot occupied by permanent impervious materials or improvements. Lot coverage includes the following materials and surfaces: asphalt, concrete, decomposed granite, compacted clay soil; mortared brick or stone; covered decks, balconies, carports, sheds and similar accessory structures; and other materials and surfaces that are predominately impervious and individually cover more than 121 square feet. The City Planning Official may determine that a material or structure meets or exempt from the criteria for impervious surfaces based on technical specifications from the manufacturer and acceptable performance guarantee from the property owner.
Building height is measured from the highest point of a flat or deck roof, or the midpoint of the main gable on a gable roof, to the finished grade at the highest point, except where this Code specifies a different reference point. Chimneys, bell towers, steeples, roof equipment, flag poles, and similar features that comprise less than ten percent (10%) of a structure’s roof area, extend not more than eight (8) feet above the highest point of the roof, and are not for human occupancy are exempt from the maximum building heights, provided that all applicable fire and building codes are met. Similar projections exceeding ten percent (10%) of the roof area or projecting more than eight (8) feet may be approved with a Conditional Use Permit pursuant to Chapter 5-4.4.
Corner clearance is measured from the closest edge of the pavement of the intersecting street to the closest edge of pavement of the connection along the traveled way.
The clear vision area, as provided in Chapter 5-3.1, is measured along the axis formed by the curbs where they meet the roadway and intersect. In the absence of a curb, the clear vision area is measured along the axis that would be formed by curbs upon full improvement of the street under the applicable roadway standards.