Zoneomics Logo
search icon

John Day City Zoning Code

ARTICLE 5

3 COMMUNITY DESIGN STANDARDS

5-3.0.010 Design Standards - Purpose

The following describes how the Community Design Standards (Article 5-3) are applied, and the relationship between Article 5-3 and the supplemental design standards for specific land uses and building types contained in Article 5-2.

5-3.0.020 Design Standards - Applicability

The regulations of Article 5-3 apply only to new development and alterations to existing development. The City of John Day Planning Official, in consultation with the Public Works Director, shall determine which provisions of Article 5-3 apply to a particular project. The Planning Official shall consider the scope of the project proposal as presented by the applicant during pre-application meeting with the City, or as described on the application form(s) required for land use or other permit approvals. Property owners and applicants are advised to contact the City of John Day prior to applying for permits.

5-3.1.010 Purpose

The purpose of this Chapter is to ensure that developments provide safe and efficient access and circulation for pedestrians and vehicles. Section 5-3.1.020 provides standards for vehicular access and circulation. Section 5-3.1.030 provides standards for pedestrian access and circulation. Standards for streets and other transportation system improvements are provided in Section 5-3.4.010.

5-3.1.020 Vehicular Access And Circulation

  1. Intent and Purpose. The intent of this Section is to manage access to land uses and on-site circulation, and to preserve the transportation system in terms of safety, capacity, and function. This Section applies to all public streets within the City of John Day, and to all properties that abut these roadways. This Section implements the transportation policies of the City of John Day Transportation System Plan.
  2. Applicability. This Chapter applies to all public streets within the City and to all properties that abut these streets. The standards apply when lots are created, consolidated, or modified through a land division, partition, lot line adjustment, lot consolidation, or street vacation; and when properties are subject to Land Use Review or Site Design Review.
  3. Access Permit Required. Access to a public street (e.g., a new curb cut or driveway approach) requires an Access Permit. An access permit may be in the form of a letter to the applicant, or it may be attached to a land use decision notice as a condition of approval. In either case, approval of an access permit shall follow the procedures and requirements of the applicable roadway authority, as determined through the review procedures in Article 5-4.
  4. Traffic Study Requirements. The City may require a traffic study prepared by a qualified professional to determine access, circulation, and other transportation requirements in conformance with Section 5-4.1.090, Traffic Impact Study.
  5. Conditions of Approval. The City or other roadway authority, as applicable, may require the closing or consolidation of existing curb cuts or other vehicle access points, recording of reciprocal access easements (i.e., for shared driveways), development of a frontage street, installation of traffic control devices, and/or other mitigation as a condition of granting an access permit, to ensure the safe and efficient operation of the street and highway system.
  6. Access Spacing. Driveway accesses shall be separated from other driveways and street intersections in accordance with the following standards:
    1. State Highways. The following access spacing standards apply with regard to redevelopment or change in land use, roadway improvements, or new access points along Highway 26 within John Day. Access to State highways shall be subject to the applicable standards and policies contained in the Oregon Highway Plan and OAR 734-051 (Division 51).

      Table 5-3.1.020F(1) Access Spacing Standards for State Highways within John Day
      SpeedUrban Non-Expressway (feet)
      Urban Business Area (UBA),
      Urban (feet)
      Special Transportation Area (STA), Urban (feet)
      55+ MPH
      700

      40 & 45 MPH
      500

      35 MPH or less
      400350175*
      * Urban STA Spacing is 175 feet or mid-block if the current block spacing is less than 350 feet. Note: From OAR 734-051, Table 4, Access Management Spacing Standards for Private and Public Approaches on District Highways.
    2. Collector Streets. A minimum of 50 feet separation between driveways (as measured from centerlines of the driveways) is required on collector streets, except that driveways may be consolidated and adjoin each other for more than one dwelling and meet this standard. See also, subsection 5-3.1.020(F)(3) below.
    3. Special Provisions for All Streets. Direct street access may be restricted for some land uses in order to maintain the safety and function of adjacent roadways, and as required for specific land uses pursuant to Article 5-2. For example, access consolidation, shared access, and/or access separation greater than that specified by this Chapter may be required by the City, Grant County, or ODOT for the purposed of protecting the function, safety and operation of the street for all users. Where no other reasonable alternatives exist, the permitting agency may allow construction of an access connection along the property line farthest from an intersection. In such cases, directional connections (i.e., right in/out, right in only, or right out only) may be required.
  7. Number of Access Points. For single-family (detached and attached), two-family, and three-family housing types, one street access point is permitted per lot, when alley access cannot otherwise be provided; except that two access points may be permitted on corner lots, or for circular driveways, subject to the access spacing standards in subsection 5-3.1.020F above. The number of street access points for multiple family, commercial, industrial, and park & open space developments shall be minimized to protect the function, safety and operation of the street(s) and sidewalk(s) for all users. Shared access may be required in order to maintain the required access spacing and minimize the number of access points.
  8. Shared Driveways. The number of driveway and private street intersections with collector and arterial streets shall be minimized by the use of shared driveways with adjoining lots where feasible. As applicable, the City shall require shared driveways as a condition of land divisions or site design review for traffic safety and access management purposes in accordance with the following standards:
  9. Joint and Cross Access – Requirement. When necessary for traffic safety and access management purposes, or to access flag lots, the City may require joint access and/or shared driveways in the following situations as follows:
    1. For parking areas where multiple property owners have entered into a shared use agreement;
    2. Where access onto an arterial street is limited;
    3. For multi-tenant developments, and developments on multiple lots or parcels. Such joint accesses and shared driveways shall incorporate all of the following:
      1. A continuous service drive or cross-access corridor that provides for driveway separation consistent with the applicable transportation authority’s access management classification system and standards;
      2. A design speed of 10 miles per hour and a maximum driveway width, excluding parking stalls, of 24 feet; additional driveway width or fire lanes may be approved when necessary to accommodate specific types of service vehicles, loading vehicles, or emergency service provider vehicles;
      3. Driveway stubs to property lines (for future extension) and other design features to make it easy to see that the abutting properties may be required with future development to connect to the cross-access driveway;
  10. Joint and Cross Access – Easement and Use and Maintenance Agreement. Pursuant to this Section, property owners shall:
    1. Record an easement with the deed allowing cross-access to and from other properties served by the joint-use driveways and cross-access or service drive;
    2. Record an agreement with the deed that remaining access rights along the roadway for the subject property shall be dedicated to the City and pre-existing driveways will be closed and eliminated after construction of the joint-use driveway;
    3. Record a joint maintenance agreement with the deed defining maintenance responsibilities of property owners.
  11. Access Connections and Driveway Design. All driveway connections to a public right-of-way (access) and driveways shall conform to all of the following design standards:
    1. Driveway Width. Driveways shall meet the following standards:
      1. One-way driveways (one way in or out) shall have a minimum driveway width of 10 feet (single lane) and a maximum width of 12 feet per lane, and shall have appropriate signage designating the driveway as a one-way connection.
      2. For two-way access, each lane shall have a minimum width of 9 feet and a maximum width of 11 feet.
      3. Driveway width shall increase (taper out) to provide for required emergency vehicle access and truck/trailer turning radius.
    2. Driveway Approaches. Driveway approaches shall be designed and located to provide exiting vehicles with an unobstructed view of other vehicles and pedestrians, and to prevent vehicles from backing into the flow of traffic on the public street or causing conflicts with on-site circulation. Construction of driveway accesses along acceleration or deceleration lanes or tapers should be avoided due to the potential for vehicular conflicts. Driveways should be located to allow for safe maneuvering in and around loading areas. See also, Chapter 5-3.3, Parking and Loading.
    3. Driveway Construction.
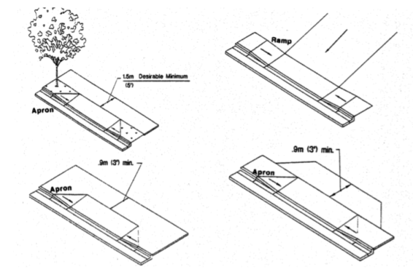
      1. Driveway aprons (when required) shall be constructed of concrete and shall be installed between the street right-of-way and the private drive, as shown in Figure 5-3.1.020K.
      2. Driveway aprons shall conform to Americans with Disability Act requirements for sidewalks and walkways, which generally require a continuous unobstructed route of travel that is not less than 3 feet in width, with a cross slope not exceeding 2 percent, and providing for landing areas and ramps at intersections.
      3. Where no sidewalk exists and the Public Works Director determines that sidewalk improvements in the vicinity are unlikely in the future, a paved apron extending 10 feet behind the right-of-way is required.
      4. Where a drainage ditch exists, a 12-inch minimum culvert extending a minimum of two (2) feet past the edge of the driveway on both sides of the driveway is required.

        Figure 5-3.1.020K Examples of Acceptable Driveway Openings Next to Sidewalks/Walkways


        Note: Configurations on the left are preferable. Use configurations on the right only where space or topographic limitations apply.
  12. Fire Access and Turnarounds. When required by applicable Fire Codes, fire access lanes with turnarounds shall be provided. Except as waived in writing by the Fire Marshal, a fire equipment access drive shall be provided within 150 of all exterior walls of the first story of a building that is located more than 150 feet from an existing public street. The drive shall contain unobstructed adequate aisle width (14-20 feet) and turn-around area for emergency vehicles. The Fire Marshal may require that fire lanes be marked as “No Stopping/No Parking.” For requirements related to cul-de-sacs or dead-end streets, please refer to Section 5-3.4.010N.
  13. Vertical Clearances. Driveways, private streets, aisles, turn-around areas and ramps shall have a minimum vertical clearance of 13' 6” for their entire length and width.
  14. Vision Clearance. No visual obstruction (e.g., sign, structure, solid fence, or shrub vegetation) between three (3) feet and eight (8) feet in height shall be placed in “vision clearance areas” at street intersections on streets, driveways, alleys, or mid-block lanes as shown in Figure 5-3.1.020N. The minimum vision clearance area may be modified by the Public Works Director upon finding that more or less sight distance is required (i.e., due to traffic speeds, roadway alignment, etc.). The Public Works Director may allow light standards, utility poles, tree trunks and similar objects within a required clear vision area. See also, Chapter 5-6.2 Methods of Measurement.

    Figure 5-3.1.020N Vision Clearance Areas


  15. Conditions and Exceptions.
    1. The City may impose turning restrictions (i.e., right in/out, right in only, or right out only) for safety and to maintain adequate traffic operations where a driveway opens onto a collector or arterial street.
    2. Access to and from off-street parking areas shall not permit backing onto a public street, except for single-family dwellings.
    3. The City may reduce required separation distance of access points where they prove impractical due to lot dimensions, existing development, other physical features, or conflicting code requirements, provided all of the following requirements are met:
      1. Joint-use driveways and cross-access easements are provided;
      2. The site plan incorporates a unified access and circulation system in accordance with this Section; and
      3. The property owner(s) enter in a written agreement with the City, recorded with the deed, that pre-existing connections on the site will be closed and eliminated after construction of each side of the joint-use driveway.
  16. Site Circulation. New developments shall be required to provide a circulation system that accommodates expected traffic on the site. Pedestrian connections on the site, including connections through large sites, and connections between sites (as applicable) and adjacent sidewalks, must conform to the provisions in Section 5-3.1.030.
  17. Construction. The following development and maintenance standards shall apply to all driveways and private streets, except that the standards do not apply to driveways serving one single-family detached dwelling:
    1. Protection of Public Ways. Driveways and access roads shall be graveled to prevent tracking of mud onto city streets during site development and construction. The Public Works Director may also require rinsing of vehicles on-site before they are permitted to enter the public right-of-way.
    2. Surface Options. Driveways, parking areas, aisles, and turnarounds may be paved with asphalt, concrete, or comparable surfacing, including interlocking pavers or other durable paving material. When approved by the Public Works Director, porous paving systems may be used to manage surface water runoff. All paving materials shall be subject to review and approval by the Public Works Director.
    3. Surface Water Management. All driveways, parking areas, aisles, and turnarounds shall have on-site collection of surface waters to eliminate sheet flow of such waters onto public rights-of-way and abutting property. Surface water facilities shall be constructed in conformance with applicable engineering standards, and shall be subject to review and approval by the Public Works Director.
    4. Driveway Aprons. When driveway approaches or “aprons” are required to connect driveways to the public right-of-way, they shall be paved with concrete surfacing and conform to the City’s engineering design criteria and standard specifications. (See general illustrations in Section 5-3.1.020K, above.)
      1. Where no sidewalk exists and the Public Works Director determines that sidewalk improvements in the vicinity are unlikely in the future, a paved apron extending 10 feet behind the right-of-way is required.
      2. Where a drainage ditch exists, a 12-inch minimum culvert extending a minimum of two (2) feet past the edge of the driveway on both sides of the driveway is required.

5-3.1.030 Pedestrian Access And Circulation

  1. Site Layout and Design. To provide safe, direct, and convenient pedestrian circulation, all developments, except single-family and duplex dwellings shall provide a continuous pedestrian system within the development site that connects to the public right-of-way, regardless of whether a public sidewalk currently exists. The pedestrian system shall be based on the standards in subsections 1-4, below:
    1. Continuous Walkway System. The pedestrian walkway system shall extend throughout the development site and connect to all future phases of development, if any, and to existing or planned off-site adjacent trails, public parks, and open space areas to the greatest extent practicable. The developer may also be required to connect or stub walkway(s) to adjacent streets and to private property with a previously reserved public access easement for this purpose, in accordance with the provisions of Section 5-3.1.020, Vehicular Access and Circulation, and Section 5-3.4.010, Transportation Standards.
    2. Safe, Direct, and Convenient. Walkways within developments shall provide safe, reasonably direct, and convenient connections between primary building entrances and all adjacent streets, based on the following definitions:
      1. Reasonably direct. A route that does not deviate unnecessarily from a straight line or a route that does not involve a significant amount of out-of-direction travel for likely users.
      2. Safe and convenient. Routes that are reasonably free from hazards and provide a reasonably direct route of travel between destinations.
      3. "Primary entrance" is the main public entrance to the building. In the case where no public entrance exists, street connections shall be provided to the main employee entrance, as applicable.
    3. Connections Within Development. Connections within developments shall be provided as required in subsections a-c, below:
      1. Walkways shall connect all building entrances to one another to the extent practicable, as generally shown in Figure 5-3.1.030A(1);
      2. Walkways shall connect all on-site parking areas, storage areas, recreational facilities and common areas, and shall connect off-site adjacent uses to the site to the extent practicable. Topographic or existing development constraints may be cause for not making certain walkway connections, as generally shown in Figure 5-3.1.030A(1); and

        Figure 5-3.1.030A(1) Pedestrian Pathway System (Typical)


      3. Parking areas containing twenty four (24) or more parking spaces shall be broken up so that parking bays do not exceed twelve (12) contiguous parking spaces without a break. Parking areas may be broken up with landscape areas (per subsection 5-3.2.030.E), handicap-accessible walkways, plazas, streets, or driveways with street-like features. Street-like features, for the purpose of this section, means a raised sidewalk that is at least four (4) feet wide for residential projects and at least six (6) feet wide in all other projects, with 6-inch raised curbs, accessible curb ramps, street trees in planter strips or tree wells, and pedestrian-oriented lighting.
  2. Walkway Design and Construction. Walkways, including those provided with access ways through a block, shall conform to all of the standards in subsections 1-4, below, as generally illustrated in Figure 5-3.1.030B:
    1. Vehicle/Walkway Separation. Except for crosswalks (subsection 2), where a walkway abuts a driveway or street, it shall be raised 6 inches and curbed along the edge of the driveway/street. Alternatively, the decision body may approve a walkway abutting a driveway at the same grade as the driveway if the walkway is protected from all vehicle maneuvering areas. An example of such protection is a row of decorative metal or masonry bollards designed to withstand a vehicle’s impact, with adequate minimum spacing between them to protect pedestrians.
    2. Crosswalks. Where a walkway crosses a parking area, driveway, or street (“crosswalk”), it shall be clearly marked with contrasting paving materials (e.g., light-color concrete or pavers inlaid between asphalt), which may be part of a raised/hump crossing area. The reviewing body may approve painted or thermo-plastic striping and similar types of non-permanent applications may be approved for crosswalks not exceeding 24 feet in length.
    3. Walkway Width and Surface. Walkway and accessway surfaces shall be concrete, asphalt, brick/masonry pavers, or other durable surface, as approved by the Public Works Director, at least four (4) feet wide in residential projects and at least six (6) feet wide in all other projects. Multi-use paths (i.e., for bicycles and pedestrians) shall be concrete or asphalt, at least 10 feet wide, or as required by the roadway authority or park district, as applicable.
    4. Accessible routes. Walkways shall comply with applicable Americans with Disabilities Act (ADA) requirements. The ends of all raised walkways, where the walkway intersects a driveway or street shall provide ramps that are ADA accessible, and walkways shall provide direct routes to primary building entrances.

      Figure 5-3.1.030B Pedestrian Walkway Detail (Typical)


5-3.2.010 Purpose

The purpose of Chapter 5-3.2 is to promote community health, safety, and welfare by protecting natural vegetation and setting development standards for the design, installation, and maintenance of landscaping, street trees, fences, and walls; and for alterations to the same. Together, these elements of the natural and built environment contribute to the visual quality, environmental health, and character of the community. Trees provide climate control through shading during summer months and wind screening during winter. Trees and other plants can also buffer pedestrians from traffic. Walls, fences, trees, and other landscape materials also provide vital screening and buffering between land uses. Landscaped areas help to control surface water drainage and can improve water quality, as compared to paved or built surfaces. Likewise, proper maintenance of landscape features is necessary to protect the public health and safety. The Chapter is organized into the following sections:

  1. Section 5-3.2.020 Landscape Conservation prevents the indiscriminate removal of significant trees and other vegetation, including vegetation associated with streams, wetlands, and other protected natural resource areas. Landscape conservation helps prevent soil erosion and landslide hazards, while protecting natural resource values (e.g., stream flow and water quality) and community aesthetics. Conservation of native, non-invasive plant and tree species is a high priority in areas subject to natural hazards, such as hillsides and riparian areas. Regulation of tree removal in other areas of the city is intended to balance residential privacy with the desire for views from, and solar access to, individual residences.
  2. Section 5-3.2.030 - Landscaping sets standards for and requires landscaping of all development sites that require Site Design Review. This section also requires buffering for parking and vehicle maneuvering areas, and in some instances between different land uses. Section 5-3.2.030 is to be applied in conjunction with Article 5-2, Land Use Districts.
  3. Section 5-3.2.040 Street Trees sets standards for and requires planting of trees where landscape park strips are designated. Street trees add to property values and community livability by providing summer shade along walks, comfort and safety to pedestrians, improved air quality along major streets, and improved community aesthetics.
  4. Section 5-3.2.050 Fences and Walls sets standards for new fences and walls, including allowable height and materials, to promote security, personal safety, privacy, and aesthetics.

5-3.2.020 Landscape Conservation

  1. Applicability. All development sites containing Significant Vegetation, as defined by subsection B, below, shall comply with the standards of this Section. The purpose of this Section is to incorporate significant native vegetation into the landscapes of development to the greatest extent practicable. The retention of mature, native vegetation within developments is a preferred alternative to removal of vegetation and re-planting, particularly on steep slopes and areas prone to landslide or susceptible to soil erosion. Mature landscaping provides summer shade and wind breaks, controls erosion, and allows for water conservation due to larger plants having established root systems.
  2. Significant Vegetation. "Significant vegetation” means individual trees and shrubs within an Open Space District, any existing or proposed open space area within a development, geological hazard areas, flood plains, and jurisdictional wetlands, as determined by a natural resource agency with jurisdiction, except that protection shall not be required for plants listed as non-native, invasive plants by the Oregon State University (OSU) Extension Service, Grant County, or other government agency, where removal of vegetation is necessary to protect the public health, safety or welfare as determined by the City approval body.
  3. Mapping and Protection Required. Significant vegetation shall be mapped as required by Chapter 5-4.2, Site Design Review. Significant trees shall be mapped individually and identified by species and diameter or caliper at 4 feet above grade, except where a site contains more than five acres the Planning Official may accept a canopy-level inventory of trees based on an aerial photograph for a preliminary land division application. The City also may require an inventory, survey, or assessment prepared by a qualified professional when necessary to determine construction boundaries, building setbacks, and other protection or mitigation requirements.
  4. Protection Standards. Significant trees and shrubs identified as meeting the criteria in Section B, above, shall be retained to the extent practicable to minimize the risk of erosion, landslide, and stormwater runoff. Where protection is impracticable because it would prevent reasonable development of public streets, utilities, or land uses permitted by the applicable land use district, the City may allow removal of significant vegetation to provide for a reasonable building envelope (area exclusive of required yard setbacks), and areas for access and utilities. Where other areas must be disturbed to provide for construction staging areas, the applicant shall be required to restore such areas after construction with landscaping to prevent erosion and to protect the public health, safety, and welfare. With the owner’s consent, the City may accept a land dedication or become a party to a conservation easement on private property for conservation purposes.
  5. Construction; Erosion and Sediment Control. An erosion and sediment control plan is required for all new construction. All significant vegetation on a site that is not otherwise designated and approved by the City for removal shall be protected prior to, during, and after construction in accordance with a limit-of-clearing and grading plan approved by the City. The City may limit grading activities and operation of vehicles and heavy equipment in and around significant vegetation areas, streams and other water bodies to prevent erosion, pollution, or landslide hazards.
  6. Exemptions. The protection standards in “D” and “E” shall not apply to:
    1. Dead or Diseased Vegetation. Dead or diseased vegetation may be removed from an area containing significant vegetation, as defined by subsection B, provided the burden is on the property owner to demonstrate to the Planning Official that said vegetation is in fact diseased or dead before it is removed.
    2. Hazardous Vegetation and Other Emergencies. Significant vegetation may be removed without land use approval pursuant to Article 4-1 when the vegetation poses an immediate threat to life or safety, or the vegetation must be removed for other reasons of emergency (e.g., fallen over road or power line, blocked drainage way, or similar circumstance), as determined by the City Planning Official or emergency service provider.

5-3.2.030 Landscaping And Screening

  1. Applicability. This Section shall apply to all new developments requiring Site Design Review. The landscape standards may be modified in accordance with the Adjustment procedure in Section 5-4.2.060.B. The Planning Official may approve an adjustment to any standard in this section by up to 20%; the Planning Commission reviews larger adjustments.
  2. Landscaping Plan Required. A landscape plan is required. All landscape plans shall conform to the requirements in subsection 5-4.2.050B.5 (Landscape Plans).
  3. Landscape Area Standards. The minimum percentage of site area required to be in landscaping varies by zone. See the development standards in Article 5-2.
  4. Landscape Materials. Permitted landscape materials include trees, shrubs, ground cover plants, non-plant ground covers, and outdoor hardscape features, as described below. “Coverage” is based on the projected canopy cover of all plants upon maturity, i.e., typically three (3) or more years after planting.
    1. Existing Vegetation. Existing non-invasive vegetation may be used in meeting landscape requirements. When existing mature trees with a trunk diameter greater than ten (10) inches are protected on a development site (e.g., within or adjacent to parking areas) the decision making body may reduce the number of new trees required by a ratio of one (1) inch caliper of new tree(s) for every one (1) inch caliper of existing tree(s) protected. This provision does not waive the requirement for landscape areas or “breaks” between parking bays under subsections 5-3.1.030 and 5-3.2.030E; it only reduces the number of new trees that may be required where existing mature trees are preserved.
    2. Plant Selection. A combination of deciduous and evergreen trees, shrubs, and ground covers shall be used for all planted areas, the selection of which shall be based on local climate, exposure, water availability, and drainage conditions. When new vegetation is planted, soils shall be amended, as necessary, to allow for healthy plant growth.
    3. “Non-native, invasive” plants, as per Section 5-3.2.020.B, shall be removed during site development, to the extent practicable, to prevent the plants from spreading; and the planting of new invasive species is prohibited.
    4. Hardscape features. In meeting the landscape area requirements of this Chapter, and where soil and drainage conditions allow, areas covered by unenclosed patios, decks, plazas, and similar hardscape features may count toward up to fifty percent (50%) of the required landscape area, provided that such surfaces allow for stormwater infiltration to the aquifer. Swimming pools, sports courts, and similar active recreation facilities may not be counted toward fulfilling the landscape requirement.
    5. Ground Cover Standard. All landscaped area, whether or not required, that is not planted with trees and shrubs, shall have ground cover plants that are sized and spaced as follows: a minimum of one (1) plant per twelve (12) inches on center in triangular spacing, or other planting pattern that is designed to achieve at least fifty percent (50%) coverage of all landscape surface areas.
    6. Tree Size. Trees shall have a minimum diameter or caliper 4 feet above grade of two 2 inches or greater at time of planting.
    7. Shrub Size. Shrubs shall be planted from 5 gallon containers or larger.
    8. Non-plant Ground Covers. Bark dust, chips, or similar mulch shall be used to cover all landscape surfaces not otherwise planted or covered with hardscape surfaces. Stone, aggregate and similar materials may be used as ground cover, but shall cover no more than fifty percent (50%) of the area to be landscaped and shall be limited to footpaths, landscape bed borders, or structures providing erosion control or stormwater management. Non-plant ground covers cannot be a substitute for ground cover plants.
    9. Significant Vegetation. Significant vegetation protected in accordance with Section 5-3.2.020 may be credited toward meeting the minimum landscape area standards. Credit shall be granted on a per square foot basis. The Street Tree standards of Section 5-3.2.040 may be waived by the City when existing mature trees protected within the front yard provide the same or better shading, visual quality, and compatibility with adjacent structures and utilities as would otherwise be provided by standard street trees.
    10. Storm Water Facilities. Surface storm water treatment facilities (e.g., detention/retention ponds and swales designed for water quality treatment), when required under Section 5-3.4.040, shall be landscaped with water tolerant, native plants.
  5. Landscape Design Standards. All yards, parking lots, and required street tree planter strips shall be landscaped to achieve the following criteria:
    1. Yard Setback Landscaping. Landscaping in yards shall:
      1. Provide visual screening and privacy within side and rear yards; while leaving front yards and building entrances mostly visible for security purposes and maintaining opportunities for solar access and territorial views;
      2. Use shrubs and trees as wind breaks;
      3. Consider the root and canopy growth characteristics of trees and avoid conflicts with utilities;
      4. Retain natural vegetation where it does not conflict with clear vision requirements and utilities;
      5. Define pedestrian pathways and open space areas with landscape materials;
      6. Provide focal points within a development, for example, by preserving large or unique trees or groves, hedges, and flowering plants;
      7. Use trees to provide summer shading within common open space areas and within front yards when street trees cannot be provided;
      8. Use a combination of plants for year-long color and interest;
      9. Use landscaping to screen outdoor storage and mechanical equipment areas, and to enhance graded areas such as berms, swales, and detention/retention ponds.

        Figure 5-3.2.030E General Landscape Areas (Typical)

    2. Parking areas. A minimum of ten percent (10%) of the total surface area of all parking areas, as measured around the perimeter of all parking spaces and maneuvering areas, shall be landscaped. Such landscaping shall consist of “evenly distributed” shade trees with shrubs and/or ground cover plants that conform to the criteria in Section 5-3.2.030.E.1, above. “Evenly distributed” means that the trees and other plants are distributed around the parking lot perimeter and between parking bays to provide a partial canopy. At a minimum, one tree per twelve (12) parking spaces on average shall be planted to create a partial tree canopy over and around the parking area. All parking areas with more than twenty-four (24) spaces shall include landscape islands with trees to break up the parking area into rows of not more than twelve (12) contiguous parking spaces. All parking area landscapes shall have dimensions of not less than 24 square feet of area, or not less than 4 feet in width by 6 feet in length, to ensure adequate soil, water, and space for healthy plant growth. (See Figures in Section 5-3.1.030.)
    3. Buffering and Screening Required. Buffering and screening are required as follows:
      1. Parking/Maneuvering Area Adjacent to Streets and Drives. Where a parking or maneuvering area abuts a street, a low (2-4 foot high) evergreen hedge, masonry wall (brick, concrete block, stone, poured-in-place concrete, or similar material), arcade, trellis, or similar screen structure shall be established between street and driveway. The required screening shall have breaks, where necessary, to allow pedestrian access to the site and to allow visual surveillance of the site for security. Evergreen hedges used to comply with this standard shall be a minimum of 36 inches in height at maturity, and shall be of such species, number, and spacing to provide the required screening within one (1) year after planting. Any areas between the wall/hedge and the street/driveway line shall be landscaped with plants or other vegetative ground cover.
      2. Parking/Maneuvering Area Adjacent to Building. Where a parking or maneuvering area, or driveway, is adjacent to a building, the area shall be separated from the building by a curb and a raised walkway, plaza, or landscaped buffer not less than five (5) feet in width. Raised curbs, bollards, wheel stops, or other design features shall be used to protect pedestrians, landscaping, and buildings from being damaged by vehicles. Where parking areas are located adjacent to a ground-floor residence, a four (4) foot wide landscape buffer with a curbed edge may fulfill this requirement.
      3. Screening of Mechanical Equipment, Outdoor Storage, Service and Delivery Areas, and Other Screening When Required. All mechanical equipment, outdoor storage and manufacturing, and service and delivery areas, shall be screened from view from all public streets and adjacent Residential districts. Such screening shall be provided by a decorative wall (i.e., masonry, architectural quality vinyl, or similar quality material), and shall be subject to Site Design Review. Walls, fences, and hedges shall comply with the vision clearance requirements and provide for pedestrian circulation, in accordance with Chapter 5-3.1, Access and Circulation. (See Section 5-3.2.050 for standards specific to fences and walls.)
      4. Flag Lot Screen. In approving a flag lot, as regulated under Chapter 5-4.3 Land Divisions, the City may require a landscape screen and/or fence be installed along property line(s) of the flag lot, for privacy of adjoining residents, in accordance with the provisions of Section 5-4.3. A flag lot screen shall not be required if the abutting property owner(s) indicate in writing that they do not want a screen or fence, however, the owner may install one at his or her discretion.
  6. Maintenance and Irrigation. All yards and landscape areas, regardless of whether such areas are required by this Code, shall be maintained in good health, with sufficient irrigation and care. Irrigation shall be required through Site Design Review for new landscaping; temporary irrigation for a period of two years may be permitted where proposed species are drought tolerant. If the plantings fail to survive, the property owner shall replace them with an equivalent specimen (i.e., evergreen shrub replaces evergreen shrub, deciduous tree replaces deciduous tree, etc.). All plants and non-plant materials, including man-made features, on a site shall be maintained in good condition, or otherwise be replaced by the owner upon being notified by the City of such code violation.

5-3.2.040 Street Trees

Street trees shall be planted for all developments that are subject to Land Division or Site Design Review where landscape park strips exist or are required with the development. Requirements for street tree planting strips are provided in Section 5-3.4.010, Transportation Standards. Planting of street trees shall generally follow construction of curbs and sidewalks, however, the City may defer tree planting until final inspection of completed dwellings to avoid damage to trees during construction. The planting and maintenance of street trees shall conform to the following standards and guidelines, and any applicable road authority requirements:

  1. Growth Characteristics. Trees shall be selected based on climate zone, growth characteristics and site conditions, including available space, overhead clearance, soil conditions, exposure, and desired color and appearance, and in consideration of any list of desirable street trees that may be established from time to time by the City. The following should guide tree selection by developers and approval by the City:
    1. Provide a broad canopy where shade is desired, except where limited by overhead utilities or other space limitations.
    2. Use low-growing trees for spaces under low utility wires.
    3. Select trees which can be “limbed-up” to comply with vision clearance requirements.
    4. Use narrow or “columnar” trees where awnings or other building features limit growth, where view protection is desired, or where greater visibility is desired between buildings and the street.
    5. Use species with similar growth characteristics on the same block for design continuity.
    6. Avoid using trees that are susceptible to insect or pest damage and trees that produce excessive shoots (suckers), seeds or fruit.
    7. Select trees that are well-adapted to the environment, including soil, wind, sun exposure, temperature tolerance, and exhaust. Drought-resistant trees should be chosen where they suit the specific soil type.
    8. Select trees for their seasonal color if desired.
    9. Use deciduous trees for summer shade and winter sun, unless unsuited to the location due to soil, wind, sun exposure, annual precipitation, exhaust, or other considerations.
    10. The diameter of the tree trunk at maturity shall not exceed the width and size of the planter strip or tree well.
  2. Tree Size at Planting. The minimum tree size at planting is two (2) inch caliper measured four (4) feet above grove for deciduous trees, and six (6) foot height for evergreen trees.
  3. Spacing and Location. Street trees shall be planted within existing or proposed planting strips or in sidewalk tree wells on streets without planting strips, except where root system conflicts with utilities are unavoidable, in which case the City may approve trees planted in front yards of lots. Street tree spacing shall be based upon the type of tree(s) selected and the canopy size at maturity and, at a minimum, the planting area shall contain at least sixteen (16) square feet, or typically, four (4) feet by four (4) feet; trees shall be centered in the planter strip between sidewalk and curb. In general, trees should be spaced between thirty (30) feet and sixty (60) feet apart, except where planting a tree would conflict with existing trees, retaining walls, utilities and similar physical barriers. Actual spacing should be based on the trees’ growth characteristics and provide for a mostly continuous tree canopy cover over adjacent sidewalks when the trees mature.
  4. Soil Preparation, Planting and Care. The developer of subdivision or new site development with street frontage improvements shall be responsible for planting street trees, including soil preparation, ground cover material, staking, and temporary irrigation for two (2) years after planting. The developer shall also be responsible for tree care (pruning, watering, fertilization, and replacement as necessary) during the first two years after planting, after which the adjacent property owners shall maintain the trees.
  5. Assurances. The City shall require developers of subdivisions (4 or more lots), including those within Master Planned Developments, to provide a performance and maintenance bond in an amount determined by the Public Works Director, to ensure the maintenance, care and, if necessary, the replacement of required street trees during the first two (2) years after planting. See also, Section 5-3.4.090.
  6. Tree Maintenance. Maintenance of street trees, whether located in a public right-of-way or private property, is the ongoing responsibility of the adjoining property owner, subject to John Day City Code 3.814.

5-3.2.050 Fences And Walls

  1. General Requirements. All fences and walls placed within a required setback yard shall comply with the standards of this Section.
    1. The City may require installation of walls and/or fences as a condition of land use or development approval. (See also, Section 5-3.2.030 for screening requirements.)
    2. Except as provided under subsection 5-3.2.050(B), below, fences and walls placed within a required setback yard shall not exceed the following height above grade, where grade is measured from the base of the subject fence or wall:
      1. Within front and street-facing yard setbacks, four (4) feet
      2. Within side and rear yard setbacks, six (6) feet
    3. The allowable height of a fence or wall may be restricted to less than the dimensions under subsection 5-3.2.050(A)(2) to maintain required sight distance at a street intersection or driveway approach, as determined by the Public Works Director.
    4. Where a fence or wall is placed atop another fence, wall, berm, or other manmade feature, height is measured from grade at the base of such feature.
    5. Walls and fences required by the City for screening or buffering shall comply with Section 5-3.2.030.
    6. Walls and fences shall comply with the vision clearance standards of Section 5-3.1.020.
  2. Exceptions and Adjustments.
    1. One arbor, gate, or similar fence or wall not exceeding eight (8) feet in height and six (6) feet in width is allowed within a front or street-facing yard provided it does not encroach into a required clear vision area.
    2. Within a front or street-facing yard in a Residential district, a cyclone fence or similar type of fence is allowed to reach six (6) feet in height, provided such fence shall have openings evenly distributed and comprising at least fifty percent (50%) of the surface area of the fence. Alternatively, a solid fence or wall is allowed within the rear yard of a reverse frontage lot (i.e., where rear yard abuts a street right-of-way), provided such fence or wall shall be setback a minimum of five (5) feet from the right-of-way behind a landscape buffer.
    3. Within side and rear yard setbacks, including rear yard setbacks on reverse frontage lots, the maximum fence and wall height is seven (7) feet, provided such fences and walls comply with the standards of subsection 5-3.2.050(B)(4) and the permitting requirements of subsection 5-3.2.050(C).
    4. All portions of a fence or screening wall exceeding six (6) feet in height in a side or rear yard, including rear yard setbacks on reverse frontage lots, as allowed under subsection 5-3.2.050(B)(3), shall provide openings evenly distributed and comprising at least twenty percent (20%) of the surface area of that portion of the fence. For example, a six (6) foot solid cedar fence with one foot of latticework could meet this standard. Similarly, a wall consisting of a solid masonry base with ornamental (e.g., wrought iron) detailing could also meet the standard.
    5. The Planning Commission, through a Type II Site Design Review, may approve a fence or wall exceeding the height limits of this Chapter. In approving such applications, the Planning Commission must find that the proposed fence or wall is necessary to buffer road noise, to protect the privacy of residents, or to mitigate adverse impacts of adjacent land uses, and does not pose a hazard to public health or safety. The Planning Commission shall also consider whether the proposed fence design (materials, color, detailing, etc.) is compatible with existing structures in the vicinity.
  3. Permitting. A building permit is required for fences exceeding six (6) feet in height and retaining walls exceeding four (4) feet in height. In addition, walls exceeding four (4) feet require prior approval by the Public Works Director, who may require the applicant to submit plans prepared by a registered engineer.
  4. Maintenance. For public health and safety, walls and fences shall be maintained in good condition, or otherwise replaced by the property owner.
  5. Materials.
    1. Permitted fence and wall materials include weather-treated wood; untreated cedar and redwood; metal (e.g., chain link, wrought iron, and similar fences); bricks, stone, masonry block, formed-in-place concrete, or similar masonry; vinyl and composite (e.g., recycled) materials designed for use as fencing; and similar materials as determined by the City Planning Official. In addition, non-invasive evergreen hedges kept to a height of not more than eight (8) feet may be considered screening walls for the purpose of this Chapter.
    2. Prohibited fence and wall materials include straw bales, tarps, barbed or razor wire; scrap lumber, untreated wood, metal (except chain link), scrap materials, and tarps; dead, diseased, or dying plants; and materials similar to those listed herein.

5-3.3.010 Purpose

The purpose of this Chapter is to provide basic and flexible standards for development of vehicle and bicycle parking. The design of parking areas is critically important to the economic viability of some commercial areas, pedestrian and driver safety, the efficient and safe operation of adjoining streets, and community image and livability. Historically, some communities have required more parking than is necessary for some land uses, paving extensive areas of land that could be put to better use. Because vehicle parking facilities occupy large amounts of land, they must be planned and designed carefully to use the land efficiently, minimize stormwater runoff, and maintain the visual character of the community. This Chapter recognizes that each development has unique parking needs and provides a flexible approach for determining parking space requirements (i.e., “minimum” and “performance-based” standards). This Chapter also provides standards for bicycle parking because many people use bicycles for recreation, commuting, and general transportation. Children as well as adults need safe and adequate spaces to park their bicycles throughout the community.

5-3.3.020 Applicability

All developments subject to site design review (Chapter 5-4.2), including development of parking facilities, shall comply with the provisions of this Chapter.

5-3.3.030 Automobile Parking Standards

  1. Vehicle Parking - Minimum Standards by Use. The number of required off-street vehicle parking spaces shall be determined in accordance with the standards in Table 5-3.3.030A, or alternatively, through a separate parking demand analysis prepared by the applicant and subject to a Type II Land Use Review (or Type III review if the request is part of an application that is already subject to Type III review). Where a use is not specifically listed in this table, parking requirements are determined by finding that a use is similar to one of those listed in terms of parking needs, or by estimating parking needs individually using the demand analysis option described above. Parking that counts toward the minimum requirement is parking in garages, carports, parking lots, bays along driveways, City-approved shared parking, and designated on-street parking when approved by the City. There is no minimum number of off-street parking required in the CBD district; however, new development and changes in use in the CBD shall be subject to a Downtown Parking District fee upon City adoption of a Downtown Parking District (or similar) ordinance. Where such Parking District applies, parking fees shall be calculated using the minimum parking ratios in Table 5-3.3.030A, below, or as established by City Ordinance.

    Table 5-3.3.030A – Minimum Required Parking by Use

    Use Categories
    (Examples of uses are in Chapter 1.3; definitions are in Chapter 6.1.)
    Minimum Parking per Land Use
    (fractions rounded down to the closest whole number)
    Residential Categories

    Household Living

    Accessory Dwelling
    None
    Single Family Dwelling, including attached and detached dwellings and manufactured homes
    2 spaces, except attached dwellings shall conform to the parking requirements for multifamily uses
    Duplex
    4 spaces per duplex building (2 spaces per dwelling)
    Multifamily
    1 space per studio or 1-bedroom unit
    1.5 spaces/unit per 2-bedroom unit
    2 spaces/unit per 3-bedroom or larger unit
    Group Living, such as nursing or convalescent homes, rest homes, assisted living, congregate care, and similar special needs housing
    0.5 space per 4 bedrooms, except the decision making body may require additional parking adjacent street(s) have limited or no on-street parking, where most residents are expected to drive, or where owner does not provide shuttle service for residents.
    Commercial Categories

    Drive-Up/Drive-In/Drive-Through (drive-up windows, kiosks, ATM’s, similar uses/facilities), per Section 5-2.3.100
    No requirement. See Section 5-2.3.100 for queuing area requirements

    Educational Services, not a school (e.g., tutoring or similar services)2 space per 1,000 sq. ft. floor area
    Entertainment, Major Eventper CU review (Chapter 5-4.4)
    Offices2 spaces per 1,000 sq. ft. floor area
    Outdoor Recreation, Commercialper CU review (Chapter 5-4.4)
    Surface Parking Lot (when not accessory to a permitted use)per CU review (Chapter 5-4.4)
    Quick Vehicle Servicing or Vehicle Repair. (See also Drive-Up/Drive-In/Drive-Through Uses, per Section 5-2.3.100)2 spaces plus queuing space, or per CU review (Chapter 5-4.4)
    Retail Sales and Commercial Service (See also Drive-Up Uses)Retail: 2.5 spaces per 1,000 sq. ft., minimum and 4 spaces per 1,000 sq. ft. maximum; except 50% less for bulk retail (e.g., auto, boat, trailers, nurseries, lumber and construction materials, furniture, appliances, and similar sales)
    Restaurants and Bars: 5 spaces per 1,000 sq. ft. floor area
    Health Clubs, Gyms, Continuous Entertainment (e.g., bowling alleys): 3 spaces per 1,000 sq. ft.
    Lodging (hotels, motels, inns): 0.75 per rentable room; for associated uses, such as restaurants, entertainment uses, and bars, see above
    Theaters and Cinemas: 1 per 6 seats
    Other Commercial Services: 2 per 1,000 sq. ft. floor area
    Self-Service StorageNo standard; subject to CU review where CU applies.
    Industrial Categories  
    Industrial Service (See also Drive-Up Uses)1 space per 1,000 sq. ft. of floor area
    Manufacturing and Production1 space per 1,000 sq. ft. of floor area; or as required by CU (Chapter 5-4.4)
    Warehouse and Freight Movement0.5 space per 1,000 sq. ft. of floor area; or as required by CU (Chapter 5-4.4)
    Waste-Relatedper CU review (Chapter 5-4.4)
    Wholesale Sales 
    - fully enclosed1 space per 1,000 sq. ft.
    - not enclosedper CU review (Chapter 5-4.4)
    Institutional Categories  
    Basic UtilitiesParking based on applicant’s projected parking demand, subject to City approval
    Community ServiceParking based on applicant’s projected parking demand, subject to City approval
    Daycare, adult or child day care; does not include Family Daycare (16 or fewer children) under ORS 657A.2501 space per 500 sq. ft. of floor area; or as required by CU (Chapter 5-4.4)
    Parks and Open SpaceParking based on applicant’s projected parking demand, subject to City approval
    Religious Institutions and Houses of Worship1 space per 75 sq. ft. of main assembly area; or as required by CU (Chapter 5-4.4)
    SchoolsParking based on applicant’s projected parking demand, subject to City approval
    Other Categories  
    Accessory Uses (with a permitted use)Parking based on applicant’s projected parking demand, subject to City approval
    Agriculture – AnimalsParking based on applicant’s projected parking demand, subject to City approval
    Agriculture – Nurseries and similar horticultureSee Retail Sales and Wholesale, as applicable
    Radio Frequency Transmission FacilitiesNone
    Rail Lines and Utility CorridorsParking based on applicant’s projected parking demand, subject to City approval
    Temporary Uses (limited to “P” and “CU” uses), per Section 5-4.9.010.As determined per Section 5-4.9.010, subject to City approval
    Transportation Facilities (operation, maintenance, preservation, and construction)None, except for park-and-ride facilities; and where temporary parking is required for construction staging areas
  2. Vehicle Parking - Minimum Accessible Parking
    1. Accessible (ADA) parking shall be provided for all uses in accordance with the standards in Table 5-3.3.030B; parking spaces used to meet the standards in Table 53.3.030B shall be counted toward meeting applicable off-street parking requirements;
    2. Such parking shall be located in close proximity to building entrances and shall be designed to permit occupants of vehicles to reach the entrance on an unobstructed path or walkway;
    3. Accessible spaces shall be grouped in pairs where possible;
    4. Where covered parking is provided, covered accessible spaces shall be provided in the same ratio as covered non-accessible spaces;

      Required accessible parking spaces shall be identified with signs and pavement markings identifying them as reserved for persons with disabilities; signs shall be posted directly in front of the parking space at a height of no less than 42 inches and no more than 72 inches above pavement level. Van spaces shall be specifically identified as such.

      Table 5-3.3.030B - Minimum Number of Accessible Parking Spaces
      Source: ADA Standards for Accessible Design 4.1.2(5)
      Total Number of Parking Spaces Provided (per lot)
      Total Minimum Number of Accessible Parking Spaces (with 60” access aisle, or 96” aisle for vans*)
      Van Accessible Parking Spaces with min. 96” wide access aisle
      Accessible Parking Spaces with min. 60” wide access aisle

      Column A

      1 to 25
      1
      10
      26 to 50
      211
      51 to 75
      312
      76 to 100
      413
      101 to 150
      514
      151 to 200
      615
      201 to 300
      716
      301 to 400
      817
      401 to 500
      927
      >500
      2% of total parking provided in each lot
      1/8 of Column A**7/8 of Column A***
      *vans and cars may share access aisles
      **one out of every 8 accessible spaces
      ***7 out of every 8 accessible parking spaces
  3. On-Street Parking. On-street parking shall conform to the following standards:
    1. Dimensions. The following constitutes one on-street parking space:
      1. Parallel parking, each twenty-two (22) feet of uninterrupted curb;
      2. Diagonal parking, each with twelve (12) feet of curb;
      3. 90 degree (perpendicular) parking, each with twelve (12) feet of curb.
    2. Location. Parking may be counted toward the minimum standards in Table 5-3.3.030A when it is on the block face abutting the subject land use. An on-street parking space must not obstruct a required clear vision area and it must not violate any law or street standard.
    3. Public Use Required for Credit. On-street parking spaces counted toward meeting the parking requirements of a specific use may not be used exclusively by that use, but shall be available for general public use at all times. Signs or other actions that limit general public use of on-street spaces are prohibited.
  4. Shared parking. Required parking facilities for two or more uses, structures, or parcels of land may be satisfied by the same parking facilities used jointly, to the extent that the owners or operators show that the need for parking facilities does not materially overlap (e.g., uses primarily of a daytime versus nighttime nature; weekday uses versus weekend uses), and provided that the right of joint use is evidenced by a recorded deed, lease, contract, or similar written instrument establishing the joint use. The City may approve owner requests for shared parking through Land Use Review.
  5. Off-site parking. Except for single-family dwellings, the vehicle parking spaces required by this Chapter may be located on another parcel of land, provided the parcel is within 300 feet of the use it serves and the City has approved the off-site parking through Land Use Review. The distance from the parking area to the use shall be measured from the nearest parking space to a building entrance, following a sidewalk or other pedestrian route. The right to use the off-site parking must be evidenced by a recorded deed, lease, easement, or similar written instrument.
  6. General Parking Standards.
    1. Location. Parking is allowed only on streets, within garages, carports, and other structures, or on driveways or parking lots that have been developed in conformance with this code. Article 2-1, Land Use Districts, prescribes parking location for some land uses (e.g., the requirement that parking for some multiple family and commercial developments be located to side or rear of buildings), and Chapter 5-3.1, Access and Circulation, provides design standards for driveways. Street parking spaces shall not include space in a vehicle travel lane (including emergency or fire access lanes), public right-of-way, pedestrian accessway, landscape, or other undesignated area.
    2. Mixed uses. If more than one type of land use occupies a single structure or parcel of land, the total requirements for off-street automobile parking shall be the sum of the requirements for all uses, unless it can be shown that the peak parking demands are actually less (i.e., the uses operate on different days or at different times of the day). The City may reduce the total parking required accordingly through Land Use Review.
    3. Availability of facilities. Owners of off-street parking facilities may post a sign indicating that all parking on the site is available only for residents, customers, and/or employees.
    4. Lighting. Lighting at levels appropriate for pedestrian safety shall be provided over parking spaces and walkways. Light standards shall be directed downward only and shielded to prevent lighting spillover into any adjacent residential district or use.
    5. Screening of Parking Areas. Parking spaces shall be located or screened so that headlights do not shine onto adjacent residential uses, per Section 5-3.2.030E.
    6. Maintenance. All parking lots shall be maintained in good condition and repair.
  7. Parking Stall Design and Minimum Dimensions. All off-street parking spaces shall be improved to conform to City standards for surfacing, stormwater management, and striping. Standard parking spaces shall conform to the following standards and the dimensions in Figures 5-3.3.030F(1) through (3), and Table 5-3.3.030F:
    1. Parking area dimensions and layout shall conform to the dimensions in Figure 53.3.030F(1) and (2), and Table 5-3.3.030F, below;
    2. Additional parking dimensions shall be provided in accordance to Americans With Disabilities Act (ADA) standards for required ADA parking spaces (van accessible parking spaces). Parking structure vertical clearance, van accessible parking spaces, should refer to Federal ADA guidelines. See Figure 5-3.3.030F.2; and

      Figure 5-3.3.030F(1) - Parking Area Layout


      Figure 5-3.3.030.F(2) Disabled Person Parking Requirements

Table 5-3.3.030F - Parking Area Layout
Standard Space (See Figure 53.3.030F(3) for ADA space requirements)
PARKING ANGLE <°
CURB LENGTH
STALL DEPTHAISLE WIDTH
BAY WIDTH
STRIPE LENGTH
SINGLE D1
DOUBLE D2
ONE WAY A1
TWO WAY A2
ONE WAY B1
TWO WAY B2
90°8'-6"
18'36'23'
23'
59'
59'
18'
60°10'20'40'17'18'57'58'23'
45°12'18'-6"
37'13'18'50'55'26'-6"
30°17'16'-6"
33'12'18'45'51'32'-8"
22'8'-6"
17'12'18'29'35'8'-6"

Important cross-references: See also, Article 5-2.2, Land Use District standards, for parking location requirements for some multifamily and commercial land uses; Chapter 5-3.1, Access and Circulation, for driveway standards; Chapter 5-3.2, Landscaping.

5-3.3.040 Bicycle Parking Standards

All uses that are subject to Site Design Review shall provide bicycle parking, in conformance with the standards in Table 5-3.3.040, and subsections A-G, below.

  1. Minimum Required Bicycle Parking Spaces. Uses shall provide bicycle parking spaces, as designated in Table 5-3.3.040.

    Table 5-3.3.040
    Minimum Required Bicycle Parking Spaces

    Use
    Specific UsesRequired # of Spaces
    Residential Categories
    Household Living
    Multifamily
    2, or 1 per 20 units, whichever is greater
    Commercial Categories
    Retail Sales And Service

    1 per primary use or 1 per 20 vehicle spaces, whichever is greater
    Office

    2 per building or 1 per 20 vehicle spaces, whichever is greater
    Industrial Uses

    1 per 20 vehicle spaces
    Institutional Categories
    Community Service

    2, or as required by City
    Parks (active recreation areas only)

    8, or as required by City
    SchoolsGrades 2-5
    2 per classroom, or per CU permit

    Grades 6-12
    2 per 10 vehicle spaces, or per CU permit
    Religious Institutions and Places of Worship

    1 per 20 vehicle spaces, or per CU permit
  2. Exemptions. This Section does not apply to single-family and two-family housing (attached, detached, or manufactured housing), home occupations, agriculture and livestock uses.
  3. Location and Design. At least 20 percent of the required bicycle parking spaces shall be no farther from a primary building entrance than the distance from that entrance to the closest vehicle space, or 100 feet, whichever is less. Covered bicycle parking shall be incorporated wherever practical into building design (e.g., under eaves or stairwells). When allowed within a public right-of-way, bicycle parking should be coordinated with the design of street furniture, as applicable.
  4. Visibility and Security. Bicycle parking for customers and visitors of a use shall be visible from street sidewalks or building entrances, so that it provides sufficient security from theft and damage.
  5. Lighting. For security, bicycle parking shall be at least as well lit as vehicle parking.
  6. Reserved Areas. Areas set aside for bicycle parking shall be clearly marked and reserved for bicycle parking only.
  7. Hazards. Bicycle parking shall not impede or create a hazard to pedestrians. Parking areas shall be located so as to not conflict with vision clearance standards (Chapter 5-3.1, Access and Circulation).

5-3.3.050 Loading Areas

  1. Purpose. The purpose of this section of the Code is to provide standards (1) for a minimum number of off-street loading spaces that will ensure adequate loading areas for large uses and developments, and (2) to ensure that the appearance of loading areas is consistent with that of parking areas.
  2. Applicability. Section 5-3.3.040 applies to residential projects with 50 or more dwelling units, and non-residential and mixed-use buildings with 20,000 square feet or more total floor area.
  3. Number of Loading Spaces.
    1. Residential buildings. Buildings where all of the floor area is in residential use shall meet the following standards:
      1. Fewer than 50 dwelling units on a site that abuts a local street: No loading spaces are required.
      2. All other buildings: One space (e.g., for moving trucks and deliveries).
    2. Non-residential and mixed-use buildings. Buildings where any floor area is in nonresidential uses shall meet the following standards:
      1. Less than 20,000 square feet total floor area: No loading spaces required.
      2. 20,000 to 50,000 square feet of total floor area: One loading space.
      3. More than 50,000 square feet of total floor area: Two loading spaces.
  4. Size of Spaces. Required loading spaces shall be at least 35 feet long and 10 feet wide, and shall have a height clearance of at least 13 feet. The City decision body may waive the above standards pursuant to subsection 5-3.3.040E.
  5. Placement, setbacks, and landscaping. Loading areas shall conform to the setback and perimeter landscaping standards in Chapters 5-3.1 and 5-3.2. Where parking areas are prohibited between a building and the street right-of-way, loading areas are also prohibited. Through Site Design Review, the decision body may approve a parking lot, driveway, or street right-of-way area for loading area use where it finds that loading and unloading operations are short in duration, do not obstruct traffic during peak traffic hours, and do not interfere with emergency response services.

5-3.4.010 Purpose And Applicability

  1. Purpose. The purpose of this Chapter is to provide planning and general design standards for public and private transportation facilities and utilities. Streets serve both transportation and infrastructure needs and are the most common public spaces, touching virtually every parcel of land. Therefore, one of the primary purposes of this Chapter is to provide standards for functional, attractive and safe streets that can accommodate underground utilities and traffic from planned growth and provide a range of transportation options, including options for driving, walking, and bicycling. This Chapter implements the policies of the City of John Day Comprehensive Plan and Transportation System Plan.
  2. When Standards Apply. Unless otherwise provided, the standards of this Chapter apply when the Planning Official determines that a project proposal, due to projected traffic or the need to connect to City water, sewer or storm drainage, requires public improvements. All public improvements within the City shall occur in accordance with the standards and procedures of this Chapter.
  3. Engineering Design Criteria, Standard Specifications and Details. All public improvements are subject to compliance with engineering criteria and requirements, as determined by the Public Works Director. The design criteria, standard construction specifications and details maintained by the Public Works Director, or any other road authority with jurisdiction, are a part of this Code. The City’s specifications, standards, and details are hereby incorporated into this Code by reference.
  4. Conditions of Development Approval. No development may occur unless required public improvements are in place or guaranteed, in conformance with the provisions of this Code. Improvements required as a condition of development approval, when not voluntarily accepted by the applicant, shall be roughly proportional to the impact of the development on public facilities. Findings in the development approval shall indicate how the required improvements are directly related and roughly proportional to the impact.

5-3.4.010 Transportation Standards

  1. Development Standards and Criteria. Projects shall be required to meet the current standards in effect at the time an application is filed.
    1. Adequate Public Facilities. No development shall be approved unless adequate transportation facilities are available or improvements will be constructed and operational, as required by this Code, the John Day Transportation System Plan and the John Day Local Street Network Plan. If existing improvements leading to or serving the site are inadequate to handle anticipated loads, improvements are to be constructed and operational prior to the issuance of building permits or in conjunction with construction of the approved lots or parcels pursuant to financial assurance for the improvements or a written agreement with the City prior to final plat approval. Development resulting in increased traffic on a state highway shall meet the traffic operations standards per the current Oregon Highway Plan.
    2. Amendments Significantly Affecting Transportation Facilities. Amendments to the Comprehensive Plan, the Development Code or a Land Use District (zoning) that significantly affect a transportation facility shall assure that allowed land uses are consistent with the function, capacity and performance standards of the facility identified in the Transportation System Plan. This shall be accomplished through one of the following measures, subject to review and approval under Chapter 5-4.7 Amendments:
      1. Adopting measures demonstrating allowed land uses are consistent with the planned function, capacity and performance standards of the transportation facility; or
      2. Amending the Transportation System Plan to ensure that existing, improved, or new transportation facilities are adequate to support the proposed land use uses consistent with the requirements of the Transportation Planning Rule. (Oregon Administrative Rule 6012) Such amendments shall include a funding plan or mechanism consistent with the Transportation Planning Rule or include an amendment to the transportation finance plan so that the facility, improvement, or service will be provided by the end of the planning period; or
      3. Altering land use designations, densities or design requirements to reduce demand of automobile travel and meet travel needs through other modes of transportation; or
      4. Amending the Transportation System Plan to modify the planned function, capacity or performance standards of the transportation facility; or
      5. Providing other measures as a condition of development or through a development agreement or similar funding method, including transportation system management measures, demand management or minor transportation improvements. Timing of such measures shall be provided.
      6. Exceptions. An amendment that would significantly affect an existing transportation facility may be approved without assuring that the allowed land uses are consistent with the function, capacity and performance standards of the facility where:
        1. The facility is already performing below the minimum acceptable performance standard identified in the Transportation System Plan on the date the amendment application is submitted.
        2. In the absence of the amendment, planned transportation facilities, improvements and services would not be adequate to achieve consistency with the identified function, capacity or performance standard for that facility by the end of the planning period identified in the adopted John Day Transportation System Plan.
        3. Development resulting from the amendment will, at a minimum, mitigate the impacts of the amendment in a manner that avoids further degradation to the performance of the facility by the time of the development through one or a combination of transportation improvements or measures.
        4. The amendment does not involve property located in an interchange area as defined by the Transportation Planning Rule
        5. For affected state highways, ODOT provides a written statement that the proposed funding and timing for the identified mitigation improvements or measures are, at a minimum, sufficient to avoid further degradation to the performance of the affected state highway. If ODOT is given written notice and reasonable opportunity to submit a written statement but does not, the City may proceed with subsections (i) through (iv).
    3. Street Improvements. Streets within and adjacent to a development shall be improved in accordance with the City of John Day Transportation System Plan and the provisions of this Chapter. Development of new streets, including sidewalks, curbs, gutters, bicycle lanes, vehicle travel lanes, traffic control devices, and park strips, and additional right-of-way or street width or improvements planned as a portion of an existing street, shall be improved in accordance with this Chapter; and all public streets shall be dedicated to the applicable road authority upon the Public Works Director’s acceptance of said improvements;
    4. Access Improvements. All new streets, and driveways connecting to streets, shall be paved; driveways and driveway aprons shall be improved as required under Section 5-3.4.030 and subject to approval by the Public Works Director.
  2. Guarantee. The City may accept a future improvement guarantee (e.g., cash, bond, and/or owner agreement not to object to the formation of a local improvement district in the future) in lieu of street improvements if one or more of the following conditions exist:
    1. A partial improvement would create a potential safety hazard to motorists or pedestrians;
    2. Due to the developed condition of adjacent properties it is unlikely that street improvements would be extended in the foreseeable future and the standard improvement associated with the project under review would not, by itself, provide increased street safety or capacity, or improved pedestrian circulation;
    3. The improvement would be in conflict with an adopted capital improvement plan; or
    4. The improvement is associated with an approved land partition and the proposed land partition does not create any new streets or result in increased transportation demand.
  3. Creation of Rights-of-Way for Streets and Related Purposes. Streets shall be created through the approval and recording of a final subdivision or partition plat; except the City may approve the creation of a street by acceptance of a deed, provided that the street is deemed in the public interest by the City Council for the purpose of implementing the John Day Transportation System Plan and Local Street Network Plan, and the deeded right-of-way and improvements conform to the standards of this Code.
  4. Creation of Access Easements. The City may approve an access easement connecting to a public street only when the easement is necessary to provide for access and circulation in conformance with Chapter 5-3.1, Access and Circulation. Access easements shall be created and maintained in accordance with the Uniform Fire Code Section 10.207.
  5. Street Location, Width, and Grade. Except as noted below, the location, width and grade of all streets shall conform to the Transportation System Plan, Local Street Network Plan, or subdivision plat, as applicable. Street location, width, and grade shall be determined in relation to existing and planned streets, topographic conditions, public convenience and safety, and in appropriate relation to the proposed use of the land to be served by such streets. Where the location of a street is not shown on an adopted City street plan, the location of streets in a development shall provide for the reasonable continuation and connection of existing streets to adjacent developable properties, conforming to the street standards of this Chapter.
  6. Minimum Rights-of-Way and Street Sections. Street rights-of-way and improvements shall be the widths in Table 5-3.4.010. Variances to street design standards are subject to review and approval by the Public Works Director. Where a range of width is indicated, the width shall be the narrower in the range unless unique and specific conditions exists as determined by the Public Works Director based upon the following factors:
    1. Transportation policies of the Transportation System Plan;
    2. Anticipated traffic generation;
    3. On-street parking needs;
    4. Sidewalk and bikeway requirements, including the extension of and connection to existing sidewalks;
    5. Requirements for placement of utilities;
    6. Street lighting;
    7. Minimize drainage, slope, and sensitive lands impacts;
    8. Street tree location, as provided in Chapter 5-3.2;
    9. Protection of significant vegetation, as provided in Chapter 5-3.2;
    10. Safety, comfort, and convenience of motorists, bicyclists, and pedestrians;
    11. Placement of street furnishings (e.g., benches, lighting, bus shelters, etc.), as applicable;
    12. Access needs for emergency vehicles and for emergency evacuation; and
    13. Transition between different street widths (i.e., existing streets and new streets).

      Table 5-3.4.010F Minimum Street, Sidewalk and Bikeway Standards. Table 5-3.4.010F specifies typical street, sidewalk and bikeway right-of-way, paving and design standards as identified in the City of John Day Transportation System Plan. The street right-of-way and improvement standards minimize the amount of pavement and ROW required for each street classification consistent with the operational needs for each facility, including requirements for pedestrians, bicyclists and public utilities.

      Table 5-3.4.010F – Minimum Street, Sidewalk and Bikeway Standards

      Street Type
      Right-of-Way WidthCurb-to-Curb Paved WidthWithin Curb-to-Curb AreaCurbPlanting StripSidewalks
      Motor Vehicle Travel LanesCenter Turn LaneBike LanesOn-Street Parking
      Local
      Residential









      Option A
      38’-40’
      28’
      10’/10’
      NoneNone8’ (one side)
      YesNone4’-6’
      Option B
      40’-42’
      36'10’/10’
      None
      None
      8’/8’
      Yes
      None
      4’-6’ (one side)
      Option C
      38’-40’
      28'10’/10’
      None
      None
      8’ (one side)
      Yes
      None
      4’-6’ (one side
      Option D
      50'36'10’/10’
      None
      None
      8’/8’
      Yes
      None
      4’-6’
      Option E
      60'36'10’/10’
      None
      None
      8’/8’
      Yes
      (optional) 2’-6’/2’-6’
      4’-6’
      Alley









      A-1
      16’-20’
      16’-20’
      8’-10’/8’-10’
      None
      None
      None
      No
      None
      None
      Collector









      Option A
      44’-56’
      30’-32’
      10’-11’/ 10’-11’
      None
      5’/5’
      None
      Yes
      (optional) 2’-6’/2’-6
      6’/6’
      Option B40’-44’
      30’-32’
      10’-11’/ 10’-11’
      None
      5’/5’
      None
      Yes
      (optional) 2’-6’
      6’(one side)
      Option C54'42'12’/12’
      None
      5’/5’
      8’ one side
      Yes
      None6’/6’
      Option D62’-74’
      50'12’/12’
      None
      5’/5’
      8’/8’
      Yes
      (optional) 2’-6’/2’-6
      6’/6’
      Arterial








      Option A62'50'14’/14’
      12’
      5’/5’
      NoneYes
      None
      6’/6’
      Option B80'64'12’/12’
      12’
      6’/6’
      8’/8’
      Yes
      None
      6’/6’
      Option C80'50'12’/12’
      14’
      6’/6’
      None
      Yes
      None
      5’-8’/
      5’-8’
      Arterial (One-Way)60'18'12'None6'None
      Yes
      None
      6’/6’
  7. Subdivision Street Connectivity. All subdivisions including those within Master Planned Developments, shall conform to all the following access and circulation design standards:
    1. Connectivity to Abutting Lands. The street system of proposed subdivisions shall be designed to connect with existing, proposed, and planned streets outside of the subdivision as provided by the John Day Local Street Network Plan and the requirements of this Section. Wherever a proposed development abuts unplatted land or a future development phase of the same development, street stubs shall be provided to allow access to future abutting subdivisions and to logically extend the street system into the surrounding area. All street stubs shall be provided with a temporary turn-around unless specifically exempted by the Fire Marshall, and the restoration and extension of the street shall be the responsibility of any future developer of the abutting land.
    2. When Abutting an Arterial Street. Property access to abutting arterials shall be minimized. Where such access is necessary, shared driveways may be required in conformance with Chapter 5-3.1. If vehicle access off a secondary street is possible, then the road authority may prohibit access to the arterial.
    3. Continuation of Streets. Planned streets shall connect with surrounding streets to permit the convenient movement of traffic between residential neighborhoods and to facilitate emergency access and evacuation. Connections shall be designed to meet or exceed the standards in subsection 4, below, and to avoid or minimize through traffic on local streets. Appropriate design and traffic control and traffic calming measures, as provided in subsection H, below, are the preferred means of discouraging through traffic.
    4. Street Connectivity and Formation of Blocks. In order to promote efficient vehicular and pedestrian circulation throughout the city, all subdivisions and site developments requiring the extension of public streets shall be served by a connecting network of public streets and/or accessways, in accordance with the John Day Local Street Network Plan. The block length in new residential subdivisions shall not exceed 600 feet.
    5. Accessway Standards. Where a street connection in conformance with the maximum block length standards in subsection 4 is impracticable (e.g., due to topographic barriers or other physical constraints), an accessway shall be provided at or near the middle of a block in lieu of the street connection. The City may also require developers to provide an accessway where the creation of a cul-de-sac or dead-end street is unavoidable and the accessway would connect the ends of the street to another street or public access way. Such access ways shall conform to all of the following standards, which may be modified by the decision body without a variance when the modification affords greater convenience or comfort for, and does not compromise the safety of, pedestrians:
      1. Accessways shall be no less than ten (10) feet wide and contain a minimum six (6) foot wide paved walkway surface within a right-of-way or easement allowing public access; where emergency vehicle access is required, the access way shall be no less than twenty (20) feet wide and contain an all-weather driving surface with the required weight-bearing capacity;
      2. If the streets within the subdivision or neighborhood are illuminated, all access ways in the subdivision shall be lighted. Accessway lighting shall provide at least 2-foot candle of illumination of the walkway surface;
      3. A right-of-way or public access easement provided in accordance with subsection b that is less than ten (10) feet wide may be allowed on steep slopes where the decision body finds that stairs, ramps, or switch-back paths are required;
      4. All public walkways shall conform to applicable ADA requirements (exception allowed for hillsides); and
      5. The City may require landscaping as part of the required accessway improvement to buffer pedestrians from adjacent vehicles, or to screen the accessway for the privacy of adjoining residents.
  8. Traffic Signals and Traffic Calming Features.
    1. Traffic signals shall be required with development when traffic signal warrants are met, in conformance with the Federal Highway Administration approved guidelines, including but not limited to: Highway Capacity Manual and Manual of Uniform Traffic Control Devices. The location of traffic signals shall be noted on approved street plans. Where a proposed street intersection will result in an immediate need for a traffic signal, a signal meeting approved specifications shall be installed in conformance with the road authority’s requirements. The developer’s cost and the timing of improvements shall be included as a condition of development approval.
    2. When an intersection meets or is projected to meet traffic signal warrants, the City may accept alternative mitigation, such as a traffic roundabout, in lieu of a traffic signal, if approved by the Public Works Director and applicable road authority.
    3. The City may require the installation of traffic calming features such as traffic circles, curb extensions, reduced street width (parking on one side), medians with pedestrian crossing refuges, and/or special paving surfaces to slow traffic in neighborhoods or commercial areas with high pedestrian traffic.
  9. Extension of Streets, Sidewalks, and Bikeways.
    1. Where a subdivision is proposed adjacent to other developable land, a future street plan shall be filed by the applicant in conjunction with an application for a subdivision in order to facilitate orderly development of the street system. The plan shall show the pattern of existing and proposed future streets from the boundaries of the proposed land division and shall include other divisible parcels within 600 feet surrounding and adjacent to the proposed subdivision. The street plan is not binding; rather it is intended to show potential future street extensions with future development and ensure that the proposed development does not preclude future street connections to adjacent development land.
    2. Streets shall be extended to the boundary lines of the parcel or tract to be developed when the City determines that the extension is necessary to give street access to, or permit a satisfactory future division of, adjoining land. The point where the streets temporarily end shall conform to a-i, below:
      1. These extended streets or street stubs to adjoining properties are not considered to be cul-de-sacs since they are intended to continue as through streets when the adjoining property is developed.
      2. A barricade (e.g., fence, bollards, boulders or similar vehicle barrier) shall be constructed at the end of the street by the subdivider and shall not be removed until authorized by the City or other applicable agency with jurisdiction over the street. The cost of the barricade shall be included in the street construction cost.
      3. Temporary street ends shall provide turnarounds constructed to Uniform Fire Code standards for streets over 150 feet in length. See also, Section 5-3.1.020.
      4. Wheelchair ramps and other facilities shall be provided as required by the Americans with Disabilities Act (ADA). The lower lip of the wheelchair ramp shall be flush with the roadway surface.
      5. Mailboxes and utility cabinets shall not infringe on public sidewalks or access ways.
      6. Bikeways shall be designed and constructed consistent with the design standards in the “Oregon Bicycle and Pedestrian Plan: Design Standards and Guidelines,” and the American Association of State Highway and Transportation Official’s (AASHTO's) "Guide for the Development of Bicycle Facilities,” as applicable.
      7. Temporary dead-end streets (not cul de sacs) that may be extended in the future shall have a right-of-way and pavement width that will conform to City standards when extended, and shall be posted as streets to be extended in the future.
      8. Where topographical requirements necessitate either cuts or fills for the proper grading of the streets, additional easements or rights of way shall be required to allow all cut and fill slopes to be within the easements or right-of-way. The Director of Public Works shall determine the required extra width.
  10. Street Alignment and Connections.
    1. The creation of new streets making "T" intersections at collectors and arterials shall provide for intersection spacing of not less than 300 feet, as measured from the centerlines of the offset streets.
    2. Spacing between local street intersections shall have a minimum separation of 125 feet, except where the Public Works Director approves closer spacing due to topographic constraints or as necessary to provide a traffic calming feature, such as an open space, roundabout, or similar amenity. This standard applies to four-way and three-way (off-set) intersections.
    3. All local and collector streets that stub into a development site shall be extended within the site to provide through circulation unless prevented by environmental or topographical constraints, existing development patterns, or compliance with other standards in this code. This exception applies when it is not possible to redesign or reconfigure the street pattern to provide required extensions. Land is considered topographically constrained if it falls within the Geological Hazards Overlay or it contains a stream or other natural drainageway. In the case of environmental or topographical constraints, the mere presence of a constraint is not sufficient to show that a street connection is not possible. The applicant must show why the environmental or topographic constraint precludes some reasonable street connection.
    4. Proposed streets or street extensions shall be located to allow continuity in street alignments and to facilitate future development of vacant or redevelopable lands.
    5. In order to promote efficient vehicular and pedestrian circulation throughout the city, the design of subdivisions and alignment of new streets shall conform to block length standards in Section 5-3.1.020.
  11. Sidewalks, Planter Strips, Bicycle Lanes. Development shall be required to extend and improve sidewalks, planter strips, and bicycle lanes, as applicable, in conformance with the standards in Table 5-3.4.010, and pursuant to the City of John Day Transportation System Plan, John Day Local Street Network Plan, and/or the requirements of any other applicable roadway authority. The decision body may approve deferral of such improvements only as provided by Chapter 5-4.2 Site Design Review or Chapter 5-4.3 Land Divisions, as applicable. Maintenance of sidewalks and planter strips in the right-of-way is the continuing obligation of the adjacent property owner.
  12. Intersection Angles. Streets shall be laid out so as to intersect at an angle as near to a right angle as practicable, except where the Public Works Director approves closer spacing due to topographic constraints or as necessary to provide a traffic calming feature, such as an open space, roundabout, or similar amenity.
  13. Existing Rights-of-Way. Whenever existing rights-of-way adjacent to a proposed development are less than standard width, additional rights-of-way shall be provided at the time of subdivision or development, subject to the provision of Section 5-3.4.010.
  14. Cul-de-sacs. Streets shall be planned to continue to and through abutting properties, consistent with the connectivity standards in Section 5-3.4.010G. A cul-de-sac street shall only be used when environmental or topographical constraints, existing development patterns, or compliance with other standards in this code preclude street extension and through circulation. For example, the Public Works Director may approve a cul-de-sac where a street extension would otherwise exceed allowable street grades or negatively impact a natural drainageway or jurisdictional wetland. When cul-de-sacs are allowed, all of the following shall be met:
    1. The cul-de-sac shall not exceed a length of 600 feet; the length of the cul-de-sac shall be measured along the centerline of the roadway from the near side of the intersecting street to the farthest point of the cul-de-sac;
    2. The cul-de-sac shall terminate with a circular or hammer-head turnaround meeting the Uniform Fire Code. Circular turnarounds shall have a radius of no less than 40 feet, and not more than a radius of 45 feet (i.e., from center to edge of pavement); except that turnarounds shall be larger when they contain a landscaped island or parking bay at their center. When an island or parking bay is provided, there shall be a fire apparatus lane of 20 feet in width; and
    3. The cul-de-sac shall provide, or not preclude the opportunity to later install, a pedestrian and bicycle accessway connection between it an adjacent streets access ways, parks, or other right-of-way. Such accessways shall conform to Section 5-3.1.040.
  15. Grades and Curves. Except as approved by the Public Works Director, grades shall not exceed 10 percent on arterials, 12% on collector streets, or 12% on any other street. The Public Works Director may approve steeper grades for short street segments, provided the street grade does not exceed 15% for a distance greater than 250 feet), and:
    1. Centerline curve radii shall not be less than 700 feet on arterials, 500 feet on major collectors, 350 feet on minor collectors, or 100 feet on other streets; and
    2. Streets intersecting with a minor collector or greater functional classification street, or streets intended to be posted with a stop sign or signalization, shall provide a landing averaging five percent or less. Landings are that portion of the street within 20 feet of the edge of the intersecting street at full improvement.
  16. Curbs, Curb Cuts, Ramps, and Driveway Approaches. Concrete curbs, curb cuts, wheelchair ramps, bicycle ramps, and driveway approaches shall be constructed in accordance with standards specified in Chapter 5-3.1, Access and Circulation.
  17. Development Adjoining Arterial Streets. Where a development adjoins or is crossed by an existing or proposed arterial street, the development design shall separate residential access from through traffic and minimize traffic conflicts. (See also, the access requirements under Section 5-3.1.020.) The development design shall include one or more of the following, as required by the City based on multimodal safety, compatibility between the roadway and adjacent residential uses, maintenance and aesthetic considerations:
    1. A parallel access street (frontage road) along the arterial with a landscape median with raised curbs of not less than ten (10) feet in width separating the two streets;
    2. Deep lots (120 feet or greater) abutting the arterial or major collector to provide adequate arterial buffering with access taken from the subordinate street;
    3. Screen planting within a non-access reservation (e.g., public easement or tract) of not less than five (5) feet in width at the rear or side property line along the arterial; or
    4. Other treatment approved by the decision body, consistent with the purpose of this Chapter.
  18. Alleys, Public or Private. Alleys shall conform to the standards in Table 5-3.4.010. The corners of alley intersections shall have a radius of not less than 12 feet and allow access to utilities.
  19. Private Streets and Gated Streets. Private streets, including gated drives serving more than two (2) dwellings (i.e., where a gate limits access to a development from a public street), are not permitted.
  20. Street Names. No new street name shall be used which will duplicate or be confused with the names of existing streets in John Day or vicinity.
  21. Survey Monuments. Upon completion of a street improvement and prior to acceptance by the City, it shall be the responsibility of the developer's registered professional land surveyor to provide certification to the City that all boundary and interior monuments have been reestablished and protected.
  22. Street Signs. The city, county, or state with jurisdiction shall install all signs for traffic control and street names. The cost of signs required for new development shall be the responsibility of the developer. Street name signs shall be installed at all street intersections. Stop signs and other signs may be required.
  23. Mail Boxes. Mail box locations shall be as approved by the United States Postal Service.
  24. Street Light Standards. Street lights shall be installed in accordance with City standards. At a minimum street lights shall be installed at street intersections; additional street lights or lighting of pedestrian access ways may be required by the City to provide for public safety and welfare.
  25. Street Cross-Sections. The final lift of asphalt or concrete pavement shall be placed on all new constructed public roadways prior to final City acceptance of the roadway unless otherwise approved by the Public Works Director. The final lift shall also be placed no later than one (1) year from the commencement of initial construction of the development.

5-3.4.020 Public Use Areas

  1. Dedication of Public Use Areas.
    1. Where a proposed open space, park, playground, or other public use shown in a plan adopted by the City is located in whole or in part in a subdivision, the City may require the public dedication or reservation of this area on the final plat for the subdivision, provided that the impact of the development on the City park system is roughly proportionate to the dedication or reservation being made.
    2. The City may purchase or accept voluntary dedication or reservation of areas within the subdivision that are suitable for the development of parks and other public uses; however, the City is under no obligation to accept such areas offered for dedication or sale.
    3. Alternatively, the City may impose conditions of approval providing for reservation and ongoing ownership, improvement and maintenance of open space areas (e.g., through Master Plan Development approvals under Chapter 5-4.5), including payment of property taxes for said property, by a private entity such as a homeowners association.
  2. System Development Charge Credit. Dedication of land to the City for public use areas, voluntary or otherwise, may be eligible as a credit toward required system development charges for parks, as applicable.

5-3.4.030 Sanitary Sewer And Water Service Improvements

  1. Sewers and Water Mains Required. Sanitary sewers and water mains shall be installed to serve each new development and to connect developments to existing mains in accordance with the City’s Sanitary Sewer Master Plan, Water System Master Plan, and applicable engineering requirements. When streets are required to be stubbed to the edge of the subdivision, sewer and water system improvements shall also be stubbed with the streets, except as may be waived by the Public Works Director when alternate alignment(s) are provided.
  2. Sewer and Water Plan Approval. Development permits for sewer and water improvements shall not be issued until the Public Works Director has approved all sanitary sewer and water plans in conformance with City standards.
  3. Over-Sizing. The City may require as a condition of development approval that sewer, water, and/or storm drainage systems serving new development be sized to accommodate future development within the area as projected by the applicable Water, Sewer, and/or Storm Drainage Master Plan, provided that the City may grant the developer credit toward any required system development charge for the same, or the City may authorize other cost-recovery or cost-sharing methods, in conformance with Section 5-3.4.010D.
  4. Inadequate Facilities. Development permits may be restricted or rationed by the City where a deficiency exists in the existing water or sewer system that cannot be rectified by the development and which if not rectified will result in a threat to public health or safety, surcharging of existing mains, or violations of state or federal standards pertaining to operation of domestic water and sewerage treatment systems. The City may require water booster pumps or sanitary sewer lift stations be installed with backup power.
  5. Water Pressure. Above a certain elevation, where the City has limited ability to serve new development, a developer may be required to install a water storage reservoir and related infrastructure for required water flow pressure, consistent with adopted City master plans.

5-3.4.040 Storm Drainage Improvements

  1. General Provisions. A development permit may be granted only when adequate provisions for storm water and flood water runoff have been assured (i.e., through plans and assurances approved by the City). See also, Section 5-3.4.090.
  2. Accommodation of Upstream Drainage. Culverts and other drainage facilities shall be large enough to accommodate existing and potential future runoff from the entire upstream drainage area, whether inside or outside the development. Such facilities shall be subject to review and approval by the Public Works Director.
  3. Effect on Downstream Drainage. The rate of stormwater runoff leaving a development site during and after development (post-development) shall not exceed the rate of stormwater runoff leaving the site before development (pre-development).
  4. Storm Drainage Analysis and Mitigation Required. The Public Works Director may require an applicant for development to provide a storm drainage analysis prepared by a qualified professional engineer registered in the State of Oregon to examine pre- and post-development stormwater runoff conditions and any required mitigation consistent with the City of John Day Stormwater Master Plan. Such analysis, at a minimum, shall quantify pre- and post-development runoff volumes and rates and propose mitigation based on stormwater management best practices, as specified by the Public Works Director. Such mitigation shall ensure that post-development runoff rates do not exceed pre-development rates and necessary facilities are provided to protect public health, safety, and welfare. If upon reviewing the applicant’s storm drainage analysis, the Public Works Director determines that the stormwater runoff resulting from the development will overload any existing and/or proposed drainage facility, the City shall withhold approval of the development until provisions have been made for improvement of the potential adverse impacts.
  5. Over-Sizing. The City may require as a condition of development approval that any public storm drainage system serving new development be sized to accommodate future development upstream, provided that the City may grant the developer credit toward any required system development charge for the same, or the City may authorize other cost-recovery or cost-sharing methods, in conformance with Section 5-3.4.010D.
  6. Existing Watercourse. Where a watercourse, drainage way, channel, or stream traverses a proposed development there shall be provided a storm water easement or drainage right-of-way conforming substantially with the lines of such watercourse and such further width as will be adequate for conveyance and maintenance to protect the public health and safety. See also, Chapter 5-2.9 Flood Plain Overlay Zone.

5-3.4.050 Utilities

  1. Underground Utilities.
    1. Generally. All new utility lines including, but not limited to, those required for electric, communication, lighting, and cable television services and related facilities shall be placed underground, except for surface mounted transformers, surface mounted connection boxes and meter cabinets which may be placed above ground, temporary utility service facilities during construction, and high capacity electric lines operating at 50,000 volts or above. The City may require screening and buffering of above ground facilities to protect the public health, safety or welfare through Site Development Review.
    2. Subdivisions and Master Planned Developments. The following additional standards apply to all new subdivisions, including those within Master Planned Developments, in order to facilitate underground placement of utilities:
      1. The developer shall make all necessary arrangements with the serving utility to provide the underground services. Care shall be taken to ensure that all above ground equipment does not obstruct vision clearance areas for vehicular traffic (Chapter 5-3.1);
      2. The City reserves the right to approve the location of all surface-mounted facilities;
      3. All underground utilities, including sanitary sewers and storm drains installed in streets by the developer, shall be constructed prior to the surfacing of the streets; and
      4. Stubs for service connections shall be long enough to avoid disturbing the street improvements when service connections are made.
  2. Exception to Undergrounding Requirement. An exception to the undergrounding requirement may be granted where existing physical constraints, such as steep topography, natural resource constraints (e.g. geologic conditions, rivers and streams), or existing development conditions make underground placement impractical.

5-3.4.060 Easements

  1. Provision. The developer or applicant shall make arrangements with the City, the applicable district, and each utility franchise for the provision and dedication of utility easements necessary to provide full services to the development. The City's standard width for public main line utility easements shall be determined by the Public Works Director.
  2. Recordation. As determined by the Public Works Director, all easements for sewers, storm drainage and water quality facilities, water mains, electric lines, or other public utilities shall be recorded with the final plat. See Chapter 5-4.2, Site Design Review, and Chapter 5-4.3, Land Divisions.

5-3.4.070 Construction Plan Approval

  1. Plan Approval and Permit. No public improvements, including sanitary sewers, storm sewers, streets, sidewalks, curbs, lighting, parks, or other requirements shall be undertaken except after the plans have been approved by the City, permit fee paid, and permit issued. The permit fee is required to defray the cost and expenses incurred by the City for construction and other services in connection with the improvement. The permit fee shall be set by City Council.
  2. Performance Guarantee. The City may require the developer or subdivider to provide bonding or other performance guarantees, to the City’s satisfaction, to ensure completion of required public improvements pursuant to Section 5-3.4.090.

5-3.4.080 Installation

  1. Conformance Required. Improvements installed by the developer either as a requirement of these regulations or at his/her own option, shall conform to the requirements of this Chapter, approved construction plans, and to improvement standards and specifications adopted by the City.
  2. Adopted Installation Standards. The City of John Day may adopt design standards, criteria and specifications for public improvements as well as private utility installation within the public right-of-way; until such standards are adopted, project designs shall conform to the recommendations of the Public Works Director.
  3. Commencement. Work in a public right-of-way shall not begin until all applicable agency permits have been approved and issued.
  4. Resumption. If work is discontinued for more than one month, it shall not be resumed until the City is notified in writing.
  5. City Inspection. Improvements shall be constructed under the inspection and to the satisfaction of the City. The City may require minor changes in typical sections and details if unusual conditions arising during construction warrant such changes in the public interest. Modifications to the approved design requested by the developer may be subject to review under Chapter 5-4.6, Modifications to Approved Plans and Conditions of Approval. Any monuments that are disturbed before all improvements are completed by the subdivider shall be replaced prior to final acceptance of the improvements.
  6. Engineer’s Certification and As-Built Plans. A registered civil engineer shall provide written certification in a form required by the City that all improvements, workmanship, and materials are in accord with current and standard engineering and construction practices, conform to approved plans and conditions of approval, and are of high grade, prior to City acceptance of the public improvements, or any portion thereof, for operation and maintenance. The developer’s engineer shall also provide 2 set(s) of “as-built” plans, in conformance with the Public Works Director’s specifications, for permanent filing with the City. The Public Works Director may require the developer or subdivider to provide a warranty bond or other assurance pursuant to Section 5-3.4.090.

5-3.4.090 Performance Guarantee And Warranty Bond

  1. Performance Guarantee Required. The City at its discretion may approve a final plat or building permit when it determines that at least 75 percent of the public improvements required for the land division or phase thereof are complete and the applicant has an acceptable assurance for the balance of said improvements. The applicant shall provide a bond issued by a surety authorized to do business in the State of Oregon, irrevocable letter of credit from a surety or financial institution acceptable to the City, cash, or other form of security acceptable to the City.
  2. Determination of Sum. The assurance of performance shall be for a sum determined by the City as required to cover the cost of the improvements and repairs, including related engineering and incidental expenses, plus reasonable inflationary costs (110% of estimated improvement costs, as prepared by a qualified civil engineer).
  3. Itemized Improvement Estimate. The developer shall furnish to the City an itemized improvement estimate, certified by a registered civil engineer, to assist the City in calculating the amount of the performance assurance.
  4. Agreement. A written agreement between the City and developer shall be recorded with the final plat. The agreement shall not be valid until it is signed and dated by both the applicant and City Planning Official. The agreement shall contain, at a minimum, all of the following:
    1. The period within which all required improvements and repairs shall be completed;
    2. A provision that if work is not completed within the period specified, the City may complete the work and recover the full cost and expenses from the applicant;
    3. The improvement fees and deposits that are required;
    4. (Optional) A provision for the construction of the improvements in stages and for the extension of time under specific conditions therein stated in the contract.
  5. When Subdivider Fails to Perform. In the event the developer fails to carry out all provisions of the agreement and the City has un-reimbursed costs or expenses resulting from such failure, the City shall call on the bond, cash deposit or letter of credit for reimbursement.
  6. Termination of Performance Guarantee. The developer shall not cause termination of nor allow expiration of the guarantee without first securing written authorization from the City.
  7. Warranty Bond. A warranty bond good for two (2) years is required on all public improvements and landscaping when installed in the public right-of-way. The warranty bond shall equal fifteen percent (15%) of the total cost of improvements and begin upon acceptance of said improvements by the City.

5-3.5.001 Purpose And Applicability

The purpose of this chapter is to regulate the design, placement, and maintenance of signs that are visible to the public in order to preserve the health, safety and aesthetic value of the community.

5-3.5.002 Permit Requirements

  1. An application for a sign permit is a Type I procedure under Section 5-4.1.020 of this code.
  2. Sign permits are required for all new signs with the exception of items 1-5 below.
    1. Official traffic control devices.
    2. Government/Regulatory signs and legal notices.
    3. One temporary sign per lot not permanently attached to a building, structure, or the ground that otherwise meets sign standards and does not exceed 6 feet in height or 16 square feet in area.
    4. One nameplate for each dwelling unit, home occupation, or business, as applicable if the nameplate is not more than 2 square feet in area and is not specifically illuminated.
    5. Signs, decorations, and displays inside of windows or attached to the inside of windows.

5-3.5.010 General Sign Standards In All Zoning Districts

Signs are permitted in accordance with the following standards:

  1. No sign shall encroach into the clear vision area at a street or driveway intersection.
  2. No sign shall be constructed in such a manner or at such a location that it will obstruct access to any fire escape or other means of ingress or egress from a building.
  3. No sign shall be constructed in such a manner or at such a location that it will interfere with surface or underground utility and communication lines or equipment.
  4. Where a sign is subject to this Chapter and the provisions of Oregon Revised Statutes Chapter 377 – Highway Beautification; Motorist Information Signs, the most restrictive regulation shall apply.

5-3.5.020 Sign Standards In The Commercial And Industrial Zoning Districts

The following sign standards shall apply to all property in Commercial and Industrial Zones:

  1. No sign shall exceed twenty five percent (25%) of the area of the wall to which it is attached, except historic signs lawfully installed and predating the effective date of this Code (November 24, 2005) may continue, provided they do not interfere with traffic operations or create a hazard to public health or safety.
  2. No sign shall be located within or protrude into or over a street or other roadway, except where awning or canopy signs, or similar building-mounted signs, have been approved by the Planning Commission. In such cases, a minimum clearance shall be maintained in accordance with applicable codes.
  3. No sign shall be located where it shines, reflects, or glares directly onto a lot in an abutting residential zone or onto a street right-of-way.
  4. Freestanding signs (e.g., pole signs, monument signs, and similar non-building-mounted signs) erected after November 24, 2005 shall not exceed a height of ten (10) feet; such signs shall be setback a minimum of three (3) feet) from property lines.
  5. No building-mounted signs shall project more than three (3) feet above the highest roof elevation of the building to which it is mounted.

Signs exceeding these standards may be approved as a conditional use and shall be processed as a Type III procedure, per Section 5-4.1.040. The Planning Commission may limit the size, height, or area of the sign, or require the use of specific building materials ( e.g., wood, stone, or other natural appearing materials), lighting, setbacks, or other conditions of approval to ensure compatibility with the surrounding neighborhood.