LAND USE DEVELOPMENT PATTERNS
Authorized residential cluster subdivision development (see LBCS Code 9951) may be approved in the R-1, R-2, R-3 and R-4 zoning districts subject to compliance with the requirements of this section and applicable subdivision regulations.
Density on the site shall not exceed that permitted in the underlying zoning district.
Uses shall comply with the use regulations of the applicable zoning district.
Unless otherwise provided in this section, cluster development shall comply with regulations of the applicable zoning district governing height, parking, landscaping, signs, lighting, access and public improvements.
(Ord. No. O-17-013, § 1, 2-14-17)
Access to individual lots shall be provided via an internal circulation system, which may include public streets, alleys or private drives. Private drives shall not serve more than five (5) dwelling units.
(a)
Where clustering of dwellings is employed common open space, properties and facilities shall be placed in the ownership and control of a property owners' association capable of providing adequate maintenance in accordance section 35.2-10.15 of this Zoning Ordinance.
Single-household and duplex cluster development shall comply with the standards established in Exhibit VIII-1.
Exhibit VIII-1: Standards for Single-Household and Duplex Clusters
(Ord. No. O-17-013, § 1, 2-14-17)
Development of townhouse lots (see LBCS Code 1113) shall comply with the lot development standards established in Exhibit VIII-2 in addition to the standards established for parking, landscaping and other site improvements established in Article VI. Townhouses may be established by conditional use permit in the R-3, B-1, B-3 and B-5 districts and as a permitted use in the R-4 and IN-2 districts.
Exhibit VIII-2: Standards for Townhouse Development
Open space and common areas provided in conjunction with a townhouse development shall comply with the standards established in section 35.2-80.6.
(a)
Traditional neighborhood development (TND) (see LBCS Code 9952) provides opportunities for the creation of new neighborhoods designed along the traditions of small town and urban neighborhood development prevalent in the United States from colonial times until the 1940's. These design traditions created neighborhoods and communities that fostered strong connections between people as they lived, worked, shopped, learned, recreated and worshiped. Because TNDs are tightly knit and incorporate an integrated mix of uses, they do not meet the development standards of the City's existing zones. Therefore, this TND section is provided to offer a flexible set of land use and design regulations based on performance standards that will allow traditional neighborhood development subject to site-specific City review. Where TNDs are deemed appropriate by the City Council, all dimensional specifications, setback, buffering, and landscaping requirements, and location of parking facilities and recreation facilities prescribed elsewhere in this ordinance are herein replaced by an approval process in which the approved TND plan and design guidelines become the basis for continuing land use controls.
(b)
TNDs may be established by conditional use permit in the R-1, R-2, R-3, R-4, B-1, B-3, B-4, B-5 and IN-2 districts.
To carry out the intent of this section, a TND shall achieve the following objectives:
(a)
The design of the neighborhood allows residents to work, shop, and carry out many of life's other activities within the neighborhood.
(b)
A mix of land uses is provided. The proximity of uses allows residents to walk, ride a bicycle, or take transit for many trips between home, work, shopping, and school.
(c)
A variety of housing types is provided at a range of densities, types (multi-household, townhouse, and single-household), and costs. Neighborhoods are heterogeneous mixes of residences in close proximity to commercial and employment uses.
(d)
The neighborhood includes a retail, office, employment, services, and/or entertainment core to provide economic and social vitality and a major focus and meeting place in the community.
(e)
The circulation system serves many modes of transportation and provides choices for alternative transportation routes. Streets, alleys, and pedestrian and bike paths connect to the surrounding area to the extent possible. Streets and alleys generally follow a grid pattern to provide these route choices and connections. Traffic calming techniques may be used to reduce vehicle speed and increase pedestrian and bicycle safety.
(f)
The overall intensity of development is designed to be high enough to support transit service.
(g)
A system of parks, open spaces, civic, public, and institutional uses is included to create a high quality of life and civic identity for the community.
(h)
The cluster concept is embraced so as to concentrate development in environmentally suitable areas and to preserve and protect important environmental and cultural resources.
(a)
Minimum Area. The minimum area required to qualify for a traditional neighborhood development shall be 30 contiguous acres of land. Where the applicant can demonstrate that the characteristics of a proposed project site will meet the objectives of this article, the City Council may consider projects of less acreage when considering a TND application.
(b)
Location of Traditional Neighborhood Developments. A traditional neighborhood development may be established by a conditional use permit in the R-C, R-1, R-2, R-3 and R-4 residential districts and the B-1 and B-3 business districts, where the applicant can demonstrate that the characteristics of the property will meet the objectives of this section and are consistent with the Comprehensive Plan of the City of Lynchburg.
(c)
Management and Ownership of Common Open Space, Common Property and Other Common Facilities in Traditional Neighborhood Developments. All common open space properties and common facilities, such as alleys, not deeded to the City shall be preserved for their intended purpose as expressed in the approved concept plan. The developer shall provide for the establishment of a property owners' association to ensure the maintenance of all common open space properties and common facilities. The property owners' association shall be established in accordance section 35.2-10.15 of this Zoning Ordinance
(d)
Fee schedule for traditional neighborhood development review. The fees for TND review and action shall be the same as those for planned unit developments.
All uses within a traditional neighborhood development are determined by the provisions of this section and the approved conditional use permit for the project.
(a)
Residential uses.
1.
A variety of residential uses shall be provided in the traditional neighborhood development. Residences may be of any design and type, though the range of styles and materials shall be set by architectural design guidelines submitted with the TND application and made a part of the specific regulations governing the development of the TND.
2.
In developing a balanced community, the provision of housing with a broad range of prices shall be deemed to be most in compliance with the intent of this article.
3.
Generally, high density housing types (multi-household and single-household attached housing) shall be located within one-quarter mile of the core of the Development. Satellite high density residential areas are permitted if used to provide a transition between the neighborhood and abutting off-site high density housing areas, non-residential areas, or major transportation corridors. Satellite areas may include a commercial area or civic uses.
4.
A maximum of 80 percent of the net development area shall be designated for residential uses. The total land area designated for residential use shall be equal to or exceed the total area designated for commercial/service and restricted industrial combined.
5.
Of the total number of residential units to be constructed, no more than 70 percent shall be in one of the following categories:
a.
Single-household detached (see LBCS Code 1111).
b.
Single-household attached (duplexes and townhouses) (see LBCS Codes 1120 and 1113).
c.
Multi-household (see LBCS Code 1130).
6.
The maximum net density as measured in dwelling units per acre in the traditional neighborhood development shall not exceed the maximum net density set in the R-4 district. The acreage to be included in this calculation shall be all land area devoted to residential, associated park and open space uses, and associated alleys.
(b)
Commercial and Service Uses.
1.
Each traditional neighborhood development neighborhood shall have a core made up primarily of the uses permitted in the B-1 and B-3 districts and located within one quarter (1/4) mile of the identified center of the community. Small-scale satellite commercial/service uses are also permitted in the TND neighborhood outside the core area as long as in total they comprise less than one-third the gross commercial/service building square footage of the core.
2.
In addition to B-1 and B-3 permitted uses, the following conditional, commercial and service uses shall be permitted if specifically included in the approved TND plan, otherwise they will be conditional uses once a TND plan is approved:
a.
Automobile service stations (see LBCS Code 2117a);
b.
Commercial recreation establishments, such as dancing, bowling, billiards and the like, when located in enclosed buildings (see LBCS Codes 5320, 5340, 5371, 5380 and 5390);
c.
Temporary fairs, exhibitions, and circuses (see LBCS Code 9921);
d.
Tourist homes or bed and breakfasts (see LBCS Code 1310); and
e.
Veterinarian hospitals without outdoor kennels, including facilities for the sale and care of animals normally kept as pets but not farm animals (see LBCS Code 2721).
3.
The maximum floor plate for any commercial/service building shall be 20,000 square feet, though this limitation may be waived during the conditional use permit approval process upon determination that a larger building as designed will not dominate the neighborhood or its streetscape.
4.
A minimum of five percent and a maximum of 30 percent of the net development area shall be designated for commercial/service uses.
(c)
Restricted Industrial Uses.
1.
Traditional neighborhood developments may include industrial uses permitted under the I-1, restricted industrial district.
2.
A maximum of 30 percent of the net development area may be designated for restricted industrial uses.
3.
The maximum floor plate for any industrial building shall be 20,000 square feet, though this limitation may be waived during the concept plan approval process upon determination that a larger building as designed will not dominate the neighborhood or its streetscape.
(d)
Civic Uses.
1.
The following civic uses shall be permitted if specifically included in the approved traditional neighborhood development plan, otherwise they will be conditional uses once a TND plan is approved:
a.
Child and adult care centers (see LBCS Code 6562);
b.
Cemeteries and columbaria (see LBCS Codes 6722 and 6744; note that these uses are allowed by right if accessory to a church or other place of worship);
c.
Churches and other places of worship, including parish houses and educational buildings (see LBCS Code 6600);
d.
Clubs and fraternal organizations (see LBCS Code 6830);
e.
Community swimming pools (see LBCS Codes 5371 and 5372);
f.
Convents and monasteries (see LBCS Code 6600);
g.
Group homes (see LBCS Code 6522);
h.
Hospitals (see LBCS Code 6530);
i.
Libraries (see LBCS Code 4242);
j.
Museums and art galleries (see LBCS Code 5200);
k.
Nursing homes and assisted living facilities (see LBCS Code 1200);
l.
Public buildings, such as branch governmental centers, meeting halls, post offices (see LBCS Codes 4180 and 6300; note that City-owned buildings are allowed by right);
m.
Public or community recreational facilities not operated for profit (see LBCS Codes 5371 and 5372);
n.
Schools and colleges for general education (see LBCS Codes 6110, 6120 and 6130); and
o.
Other community facilities and civic uses defined in Article XI.
2.
A minimum of two percent of the net development area shall be designated for civic uses. Public utility uses shall not be included in this percentage.
(e)
Parks, Squares and Other Open Space.
1.
Since net densities of individual blocks may be high in a traditional neighborhood development, ample community open space shall be provided in parks, squares, and common open space distributed throughout the TND. In order for a parcel to be considered a park, a square, or common open space, it must be at least one-quarter acre in size. No residential unit of the neighborhood shall be located more than one-quarter mile (1,320 feet) from the boundary of a park, square, or common open space property. This requirement may be waived by City Council during the conditional use permit approval process in instances of unusual parcel shapes, the provision of ample private open space, or other mitigating factors.
2.
A minimum of ten percent of the net development area shall be designated for park, square, and/or common open space uses. At least 1.0 acre total of parks or squares shall be provided in the core area of the TND.
(f)
Accessory and Other Associated Uses. The following accessory uses and structures are permitted within a traditional neighborhood development:
1.
Private and public garages (see LBCS Code 2640);
2.
Private and public parking lots or structures (see LBCS Code 2640);
3.
Signs in commercial/service and restricted industrial areas according to section 35.2-64 et seq. and the approved traditional neighborhood development design guidelines, provided no sign shall exceed the number and maximum area as established in Section 35.2-64.14.
4.
Signs in residential, civic, and public use areas according to section 35.2-64.12.
In a traditional neighborhood development, the fronts of buildings face on the public realm of the community (the sidewalks, streets, public parks and squares), while private yards and off-street parking are located to the rear. Therefore, buildings are to have minimal setbacks from the front property line. Commercial/service, multi-household residential, and single-household attached residential buildings are generally recommended to have front setbacks of zero to ten feet, and single-household detached residential buildings, front setbacks of zero to 25 feet. The TND design guidelines shall set forth the required minimum and maximum setbacks for proposed TND buildings.
(a)
Streets, Alleys, Paths, and Block Patterns in Traditional Neighborhood Developments.
(b)
The transportation system in traditional neighborhood developments shall be modeled on a grid street and alley pattern modified to accommodate the topography of the site and parcel shape. Culs-de-sac should be avoided to the extent possible and shall not exceed 20 percent of the total length of streets in the traditional neighborhood development, excluding alleys.
(c)
Private streets and alleys, built to standards as approved by the technical review committee, are permitted in TNDs. Such private streets and alleys are permitted to serve multiple lots and uses. In other words, lots and uses are not required to have their own separate entrance on to a public street and may share a private street or alley entrance on to a public street. Private streets and alleys shall be maintained by the homeowners' association.
(d)
All lots shall front on a public or private street or on a square. Alleys shall serve only the rear or sides of lots or uses.
Exhibit VIII-3: Summary of TND Size, Land Use, Setback,
Density, and Bulk Standards
(e)
Streets, alleys, paths, and block patterns in traditional neighborhood developments.
(f)
The transportation system in traditional neighborhood developments shall be modeled on a grid street and alley pattern modified to accommodate the topography of the site and parcel shape. Culs-de-sac should be avoided to the extent possible and shall not exceed 20 percent of the total length of streets in the traditional neighborhood development, excluding alleys.
(g)
Private streets and alleys, built to standards as approved by the technical review committee, are permitted in TNDs. Such private streets and alleys are permitted to serve multiple lots and uses. In other words, lots and uses are not required to have their own separate entrance on to a public street and may share a private street or alley entrance on to a public street. Private streets and alleys shall be maintained by the home owners' association.
(h)
All lots shall front on a public or private street or on a square. Alleys shall serve only the rear or sides of lots or uses.
(i)
In the TND core area, the blocks created by the grid of streets shall have a maximum block perimeter of 1,600 feet. Where slopes exceed ten percent, the block perimeter may exceed 1,600 feet to reduce the number of streets constructed perpendicular to the steep slopes provided that pedestrian access is provided across any block that exceeds 500 feet in length. Such access shall be provided within an easement of not less than ten feet in width.
(j)
In areas where multi-household residential, commercial/service, and restricted industrial uses predominate, sidewalks shall be provided on both sides of the street. In single-household detached and single-household attached residential areas, sidewalks shall be provided on at least one side of the street.
(k)
Pedestrian and/or bicycle routes, lanes, or paths shall be provided to connect all uses and reduce motor vehicle use. Street design shall provide for the safety of pedestrians and bicyclists.
(a)
Parking and loading spaces shall be provided as required in section 35.2-62 et seq. of the City Code except that on-street as well as off-street parking spaces shall be counted toward satisfaction of the requirements. On-street parking spaces assigned to a building or use shall be those spaces directly abutting the lot containing that building or use. All required handicapped parking spaces shall be provided off-street.
(b)
Shared parking shall be permitted in accordance with the shared parking provisions of section 35.2-62.4(d).
(c)
Off-street parking and loading spaces shall be located behind or to the side of buildings and may be served directly or indirectly by alleys. The TND design guidelines shall specify how off-street parking and loading areas shall be landscaped and screened from public streets.
Traditional neighborhood developments are permitted only by conditional use permit as established in section 35.2-11 of this ordinance.
Prior to securing a Building Permit for any construction in a traditional neighborhood development, approval of a concept plan and final site plan shall be obtained. The final site plan shall conform to the conditions of the TND conditional use permit and may be submitted for the entire site, or a portion of the site if the development is to be phased. Procedures for review of the final site plan shall be the same as those established in section 35.2-14.2.
The procedures of section 35.2-12 of the Zoning Ordinance shall be followed if changes to the traditional neighborhood development conditional use permit are requested or if the applicant wishes to appeal any decision of any City official.
Planned unit developments (PUDs) (see LBCS Code 9953) provide flexible land use and design regulations through the use of performance criteria so that small-to-large scale neighborhoods or portions thereof may be developed within the City that:
(a)
Incorporate a variety of residential types meeting the full range of needs by Lynchburg residents;
(b)
Contain both individual building sites and common property which are planned and developed as a unit;
(c)
Are designed and organized to be capable of use and operation as a separate entity without necessarily needing the participation of other building sites or other common property in order to function as a neighborhood;
(d)
Incorporate innovations in residential development so that the growing demands for housing at all economic levels may be met by greater variety in type, design, and siting of dwellings;
(e)
Encourage conservation and more efficient use of land;
(f)
Provide economies in the construction, maintenance and the provision of services;
(g)
Provide amenities for occupants and the general public;
(h)
Improve mobility for all modes of transportation; and
(i)
Preserve natural conditions and facilitate innovative environmental design.
Planned unit developments (see LBCS 9953) may be established by conditional use permit in the R-1, R-2, R-3 and R-4 districts.
The City recognizes that while the standard zoning and the subdivision regulations are appropriate for the regulation of land use in areas or neighborhoods that are already substantially developed, these controls can represent a type of pre-regulation, regulatory rigidity and uniformity. Thus, where development flexibility is deemed appropriate by the City Council, all dimensional specifications, setback requirements, buffering requirements, landscaping requirements, location of off-street parking facilities and location of recreation facilities elsewhere in this ordinance are herein replaced by an approval process in which an approved concept plan becomes the basis for continuing land use controls.
To carry out the purposes of this section, a planned unit development shall achieve the following objectives:
(a)
A choice in types of environment; occupancy tenure (e.g., cooperatives, individual ownership, condominium, leasing); types of housing (e.g., detached, attached, small houses); lot sizes (e.g., conventional and clustered lots); and community facilities available to existing and potential residents at all economic levels.
(b)
More usable open space and recreation areas.
(c)
The preservation of trees, outstanding natural topography and geologic features and prevention of soil erosion.
(d)
A creative use of land and related physical development which allows an orderly transition of undeveloped land to urban areas.
(e)
An efficient use of land resulting in smaller networks of utilities and streets, thereby lowering housing costs.
(f)
A development pattern in harmony with the objectives of the Lynchburg Comprehensive Plan.
(g)
A more desirable environment than would be possible through the strict application of other articles of the Zoning Ordinance.
(a)
Minimum Area. Generally, the minimum area required to qualify for a planned unit development shall be five contiguous acres of land. Where the applicant can demonstrate that the characteristics of his holdings will meet the objectives of this article, the City Council may consider projects with less acreage.
(b)
Ownership. The tract of land for a project may be owned, leased, controlled or under option by a single person or corporation or by a group of individuals or corporations. An application must be filed by the owner or jointly by owners of all property included in the project or by the property owner's authorized agent with the power of attorney to sign the petition. In case of multiple ownership, the approved conditional use permit shall be binding on all owners.
(c)
Location of Planned Unit Developments. A planned unit development may be established by a conditional use permit in any residential district of the City where the applicant can demonstrate that the characteristics of his holdings will meet the objectives of this article and is consistent with the Comprehensive Plan of the City of Lynchburg.
(d)
Management and Ownership of Common Open Space, Property and Facilities in Planned Unit Developments. All privately owned common open space designated in the approved final site plan shall be permanently preserved and maintained as open space. All deeds for property in a planned unit development shall include appropriate restrictions to ensure that all open space is permanently preserved as open space as shown on the approved conditional use permit. The property owner's association shall be established in accordance section 35.2-10.15 of this Zoning Ordinance.
All uses within an area designated as a planned unit development are determined by the approved conditional use permit of the project concerned in accordance with the provisions of this section.
(a)
Residential Uses. Residences may be of any variety and type. In developing a balanced community, the use of a variety of housing types shall be deemed to be most in compliance with the intent of this article. However, at least 20 percent of the total number of dwelling units within any planned unit development shall be in single-household, detached structures. City Council may reduce or eliminate the mandatory single-household detached structure requirement.
(b)
Accessory Commercial, Service and Other Nonresidential Uses. Commercial, service and other nonresidential uses may be permitted (or required) where such uses are designed to serve the residents of the planned unit development. The following proportions are deemed to be in keeping with the overall intent of the planned unit development concept:
1.
Where the planned unit development contains 100 or more dwelling units, a maximum of 2,400 square feet of floor area for every 100 dwelling units may be used for limited commercial and/or service purposes. Such commercial or service area may be in separate buildings or incorporated within two-household or multi-household structures or in a suitable combination of these alternatives.
2.
Where the planned unit development contains 300 or more dwelling units, a maximum of one-half acre of land for every 100 dwelling units may be used for commercial and/or service purposes.
(c)
Accessory and Associate Uses. Customary accessory or associated uses such as private garages, storage spaces, recreational and community activities, churches, and schools shall also be permitted as appropriate to the planned unit development as provided in section 35.2-71 and the terms of the conditional use permit approval.
(a)
Basic Density Calculations. The total number of dwelling units permitted shall be based on the densities established in the Comprehensive Plan for the applicable future land use category. Land designated for mixed-use development in the Comprehensive Plan shall not exceed residential densities of 24 dwellings per acre except as provided in paragraph (b).
(b)
Density Bonus for Design Elements. The number of dwelling units permitted may be increased through the density bonus provisions established for the R-4 district in section 35.2-44.4(b) (Density and Height Bonuses).
Large scale retail establishments (see LBCS Code 9954) are critical to the economic vitality of the City, convenience of citizens and ensuring that the City maintains its position as the economic center of the region. While retail establishments are important, their size can greatly impact the general health, safety and welfare of the City in terms of aesthetics, stormwater management, air pollution, light pollution, traffic, walkability and neighborhood compatibility. It is the intent of this ordinance to promote economic development and redevelopment which utilizes high-quality site, building design and land use to further the goals and objectives of creating accessible and attractive commercial districts, sustaining nature in the City, reinforcing neighborhood character, promoting a diverse, vital economy and providing effective support systems as stated in the City's Comprehensive Plan.
(a)
The provisions of this ordinance shall apply to large scale retail establishments having a cumulative gross floor area of 75,000 new square feet or greater in floor area at time of site plan approval, whether such new gross floor area is contained entirely within a freestanding building or is within two or more buildings, whether located on a single lot or contiguous lots owned or operated as associated, integrated or cooperative business enterprises.
(b)
The requirements of this ordinance shall be in addition to all other applicable ordinances, regulations and requirements, such as the erosion & sediment control ordinance, stormwater management ordinance, landscaping ordinance and sign ordinance. In the event that this ordinance and other applicable regulations of the Zoning Ordinance differ, the regulations of this ordinance shall apply.
(c)
Large scale retail establishments shall be allowed as a permitted use in the B-3, B-4, B-5 and IN-2 districts.
(a)
The applicant shall submit a traffic study detailing impacts on the City's road network and traffic circulation for the site. The traffic study shall be prepared by a firm qualified to conduct traffic engineering studies. The methodology for the required traffic study shall be approved by the City's transportation engineer prior to commencement of the study. Technical guidelines for traffic studies may be obtained from the City's transportation engineer.
(b)
The findings and recommendations for needed improvements as determined by the traffic study shall be made by the developer. Needed improvements may include but are not limited to: right and left turn lanes, sidewalks, new or modification of existing signals, trails or trail connections, sight distance improvements, street lighting, bus stops or transit pullout bays, access management techniques, and transportation systems management. Only those improvements where a clearly demonstrated nexus between the development and the need for the improvement exist shall be required.
(c)
Shared direct access and internal vehicle circulation shall comply with the standards in section 35.2-66.
(d)
Truck traffic shall be separated to the greatest extent possible from vehicular, pedestrian and bicyclist traffic.
(e)
Entrances to the site shall be designed to maximize pedestrian, bicyclist and vehicular safety, maximize efficient traffic circulation and minimize the impact on adjacent neighborhoods.
(f)
Adequate stacking for vehicles shall be provided at the access points to and from parking areas.
(g)
Provisions for mass transit shall be made in the form of appropriately placed benches and shelters within the development or along public streets.
(h)
Pedestrian walkways shall be provided between all buildings and between buildings and parking areas and all out parcels. Walkways within parking areas shall be located in a manner to provide safe efficient movement of pedestrians. Walkways shall be located in a manner so that no parking space is further than 120 feet from a walkway. Walkways and crosswalks shall be distinguishable from drive aisles.
(i)
All pedestrian walkways shall be designed to provide safe efficient access for people with disabilities. Ramps shall be provided between all walkways and all crosswalks.
Sidewalks shall be provided along the property frontage of all public streets. Connections between the sidewalk and internal walkways shall be provided.
Lighting shall comply with the standards established in section 35.2-65 except that in no instance shall light poles exceed 35 feet in height.
(a)
Roofs. Parapets shall conceal flat roofs and all rooftop equipment such as heating ventilation and air conditioning (HVAC) units from street level view.
(b)
Entryways. The building shall have clearly defined, highly visible entryways.
(c)
Building façade. Building facades greater than 150 feet in length measured horizontally and visible from a public street, shall incorporate wall plane projections or recesses having a depth of at least three feet to break up the expansiveness of the exterior. All recesses shall be properly lit to encourage a safe environment.
(d)
Outdoor vending areas. Outdoor vending areas shall be incorporated into the facade of the building.
(e)
Service areas incorporated into overall plan. Loading docks, truck parking, outside storage, cargo containers, trash collection, utility meters, HVAC equipment, trash collection, and other service functions shall be incorporated into the overall design and landscaping so that the visual and acoustical impacts of these functions screened from view of public / private streets and all adjacent properties (unless those adjacent uses are other loading areas, truck parking areas and storage areas) and no attention is attracted to the functions by the use of screening materials that are different from or inferior to the principal materials of the building and landscaping.
(f)
Buildings and sites shall be designed using crime prevention through environmental design (CPTED) strategies.
(g)
In all parking areas that are in excess of that required by section 35.2-62 et. seq., off-street parking and loading shall implement practices that will allow 25 percent of the stormwater attributable to the parking area for the one-year storm to infiltrate to the soil below. In cases where soil quality or other limiting factors will not allow for adequate infiltration, filtering practices with underdrains may be used as an alternative, subject to approval by the Zoning Administrator.
(Ord. No. O-17-013, § 1, 2-14-17)
Cluster Commercial Developments (CCDs) (see LBCS Code 9955) are intended to provide for flexibility in the planning of certain tracts of land, under single or multiple ownership, through the modification of certain lot, setback, and use restrictions. Developments under these regulations should provide for increased amenity, safety, and other public and private benefits, as well as reduced public and private costs. CCDs are generally characterized by a unified or planned clustering of development served by common parking areas with a common means of ingress and egress. These Developments should be designed to mitigate potential increases in traffic congestion through enhanced pedestrian access between uses within the CCD and to reduce distractions from such sources as signs and artificial lighting.
Within any cluster commercial development, no lot, building, or structure shall be used and no building shall be erected that is intended or designed to be used in whole or in part for any industrial or manufacturing purpose.
Subject the prohibitions in section 35.2-85.2, uses permitted by right in the R-3 through B-5 districts will be permitted through the Conditional Use Permit approval process in accordance with regulations contained herein.
Cluster commercial development districts may be established in accordance with the regulations of this section and section 35.2-11, Applications Requiring Public Hearings Before City Council, in locations that:
(a)
Are consistent with the Comprehensive Plan of the City of Lynchburg and located in areas designated for the following future land uses: Neighborhood Commercial, Community Commercial, Mixed Use and Institution;
(b)
Located in any B-1, B-3, B-5, and IN-2 zoning district by conditional use permit;
(c)
Are located within one-quarter mile of an existing or planned transit route and have direct pedestrian access to the route.
(a)
CUP and Concept Plan Required. No development, including the filing of a subdivision plat, within this a cluster commercial development shall be commenced until a Concept Plan and Conditional Use Permit have been approved by the City Council pursuant to section 35.2-11 (Applications Requiring Public Hearings Before City Council). Final approval of the conditional use permit is contingent upon approval of the final site plan.
(b)
Final Site Plan Required. Before any permit shall be issued for the erection of a permanent building in a proposed cluster commercial development may be issued, final site plan approval shall be required in accordance with section 35.2-14.2. (Site Plans).
(a)
General Standards. Cluster commercial developments shall comply with the site development standards established in Exhibit VIII-4 and subsequent provisions of this section.
Exhibit VIII-4: Cluster Commercial Development Standards
(b)
Parking Requirements.
1.
Required parking spaces shall be provided within the perimeter of the cluster commercial development and no further than 500 feet from the facilities to be served. Off-street parking and loading areas shall be screened from residential areas and shall be designed to produce the minimum possible interference with pedestrian circulation within the development.
2.
On-street parking shall be encouraged and shall count towards required parking for uses on abutting sites.
3.
Parking lots shall be located in the middle of blocks and shall be located behind the front building lines of structures.
4.
Shared parking shall be encouraged in accordance with the shared parking provisions of section 35.2-62.4(d).
(c)
Access and Circulation.
1.
Interior vehicular circulation and access shall comply with the provisions of section 35.2-66 et seq. A CCD shall be subject to the intersection visibility standards of the B-4 district where buildings are located within five feet of streets.
2.
To improve connectivity between uses within the CCD, maximum block length within the CCD shall be 400 feet unless convenient and safe pedestrian cross-block access will be provided to mitigate the impacts of longer blocks.
3.
Sidewalks are required pursuant to section 35.2-67.
(d)
Utilities. All utilities within a CCD shall be located underground.
(e)
Concentration of Development. Building entrances along streets shall be separated by no more than 150 feet from the next building entrance along a block face.
As described in the City's Comprehensive Plan, the demand for industrial and commercial space is changing. At this time, the demand is for concentrations of industrial, office, and technology uses where the owners of one business can interact with other complementary businesses in close proximity. By encouraging the clustering of complementary and related uses in flexible space developments (see LBCS Code 9956), the City seeks to preserve and expand the City's employment base, concentrate infrastructure investment, and minimize potential use conflicts. While limited commercial uses may be appropriate to serve the needs of employers and employees in these developments, retail and service uses should be limited.
To carry out the intent of this section, a flexible space development shall achieve the following objectives:
(a)
These developments are intended to promote the efficient use of developable lands by clustering similar and complementary land uses in close proximity to one another. A flexible space development shall resemble and function like a well-planned business park.
(b)
These developments shall be substantially consistent with the goals and objectives of City's Comprehensive Plan and the Future Land Use Map.
(c)
Land uses incorporated in these developments will generate moderate levels of truck traffic and be minimal sources of noise, vibration, dust, air and water pollution, or other nuisances so as to limit impacts on neighboring areas.
(d)
Circulation patterns will, to the greatest extent feasible, separate truck traffic from automobiles, bicycles, and pedestrians.
(e)
Natural buffer zones shall be preserved and/or created, as needed, between flexible space developments and surrounding residential areas.
(f)
Preservation of trees, outstanding natural topography, and geologic features is strongly encouraged. Soil erosion is to be prevented.
(g)
Regional stormwater management practices shall be followed.
(h)
Large-scale retail uses are not permitted in flexible space developments.
(i)
Provision of at least one amenity to encourage business development is required. Examples include, but are not limited to, bike paths, health trails, outdoor recreation areas, sidewalks, and other amenities.
(j)
Environmentally sustainable development through green building design and innovative site design is encouraged.
(k)
Renovation and adaptive reuse of existing structures and/or developments through redesign, renovation, and repositioning are encouraged.
(l)
Isolated residential uses remaining in areas covered by these developments shall gradually be removed or relocated.
(a)
Minimum Area. Generally, the minimum area required to qualify for a flexible space development shall be five contiguous acres of land. Where the project proponent can demonstrate that the characteristics of a proposed project site will meet the objectives of this article, the City Council may consider projects of less acreage.
(b)
Location of Flexible Space Developments. Flexible space developments are permitted by right in I-1, restricted industrial districts, and I-2, light industrial districts. Flexible space developments are permitted in B-5, general business districts, by conditional use permit (CUP), where the project proponent can demonstrate that the characteristics of the property will meet the objectives of this section and are consistent with the City's Comprehensive Plan.
(c)
Ownership. The tract of land for a flexible space development may be owned, leased, controlled, or under option by a single person or by a corporation or by a group of individuals or corporations. An application must be filed by the owner or jointly by owners of all property included in the development or by the property owner's authorized agent with the power of attorney to sign the application. In case of multiple ownership, the approved site plan shall be binding on all owners.
(d)
Concept Plan. A concept plan for the overall site will be prepared and submitted for review by the planning division and the technical review committee (TRC). Once the concept plan has been approved by the City Council or City Planner, a final site plan will be submitted to the City Planner for review and approval. This final site plan may be prepared for each phase of a phased development. Final site plans shall be in substantial compliance with the concept plan.
(e)
Management and Ownership of Common Open Space and Other Common Facilities. All privately owned common open space and common facilities designated in the approved final site plan shall be permanently preserved and maintained as open space or common facilities. All deeds for property in a flexible space development shall include appropriate restrictions to ensure that all open space and common facilities are permanently preserved as open space as shown on the approved final site plan. The property owners' association shall be established pursuant to section 35.2-10.15 of this Zoning Ordinance. Flexible space developments with one owner will not require a property owners' association.
(f)
Fee Schedule for Flexible Space Development Review. The fees for flexible space development review and action shall be the same as those for planned unit developments.
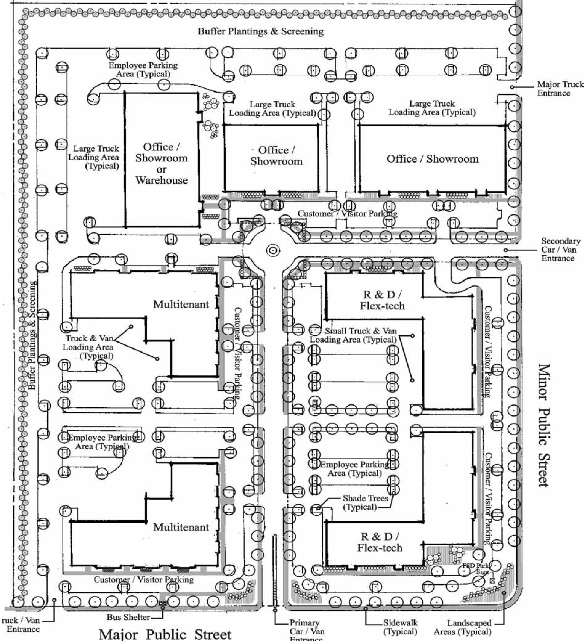
Exhibit VIII-5: Illustration of a Hypothetical Flexible Space Development
All uses within a flexible space development are determined by the provisions of this section and the approved site plan of the project.
(a)
Permitted uses by right include any use that meets the objectives of section 35.2-86.2 including, but not limited to, the manufacturing, assembly, distribution, repair, and servicing of:
1.
Apparel and accessories (see LBCS Codes 3130 and 3140);
2.
Artisan and craft work (see LBCS Codes 3410-3430);
3.
Automobile and truck parts (see LBCS Code 3370);
4.
Building and construction materials, supplies, and equipment (see LBCS Codes 3320, 3330, 3240 and 3350);
5.
Carpentry and cabinet making shops (see LBCS Code 7310);
6.
Computers, business machines, parts, and accessories (see LBCS Code 3360);
7.
Contractors' establishments, offices, and display rooms, but not equipment storage yards or plants, or rental equipment (see LBCS Code 7300);
8.
Data switching and processing equipment and services (see LBCS Code 4244);
9.
Electrical appliances, lighting, testing, transmission, and distribution equipment (see LBCS Code 3350);
10.
Employment service or agency (see LBCS Code 2423a);
11.
Engineering, professional, research, and scientific instruments and equipment, photographic and optical goods, watches and clocks, parts and supplies (see LBCS Code 2410);
12.
Fabric products and supplies (see LBCS Code 3130);
13.
General hardware and hand tools (see LBCS Codes 3350 and 3450);
14.
Home and office furnishings, fixtures, and equipment (see LBCS Codes 3230 and 3430);
15.
Medical equipment, instruments, and supplies (see LBCS Code 3360);
16.
Metal products and machinery, metal finishing (see LBCS Codes 3350 and 3450);
17.
Musical instruments and parts (see LBCS Code 3420);
18.
Office buildings with a minimum of 7,200 square feet each of gross floor area (see LBCS Code 2400);
19.
Optical equipment (see LBCS Codes 3330 and 3360);
20.
Packaging and paper products (see LBCS Code 3220);
21.
Personal care products (e.g., cosmetics, toiletries) (see LBCS Code 3320);
22.
Plastics (see LBCS Code 3310);
23.
Printing, publishing, copying, and binding (see LBCS Code 3220)
24.
Research, development, testing, medical, and dental laboratories (see LBCS Codes 2410 and 6513);
25.
Signs and advertising displays (see LBCS Code 3440);
26.
Sporting and athletic equipment, toys, and games (see LBCS Code 3420);
27.
Static transformer stations, transmission lines, gas and water mains, conduits for the transmission of electric energy including telephone, telegraph, and noncommercial radio and television poles and appurtenances thereto (see LBCS Codes 3320-3360); and
28.
Telephone exchanges (see LBCS Code 4240).
(b)
Permitted Accessory Uses. The following uses are permitted when serving as an accessory use to one or more of the by-right uses listed in section 35.2-86.4:
1.
Banks, credit unions, and similar establishments (see LBCS Code 2110);
2.
Bus and other transit stations (see LBCS Code 4151-4154);
3.
Convenience and service establishments, such as, but not limited to, barber shops, beauty parlors, convenience stores, dry cleaning/laundry establishments, medical clinics, newsstands, and tailors. Automobile gas stations or other establishments with gas pumps are not permitted. Convenience and service establishments shall not exceed 20 percent of the gross floor area of all buildings in the development (see LBCS Codes 2151-2154 and 2510-2530);
4.
Daycare centers for employer-sponsored child day or adult day care intended to serve employees of businesses in the development (see LBCS Code 6562);
5.
Depositories for the storage of office records, microfilm, computer tapes, or similar records (see LBCS Code 4240);
6.
Janitorial or exterminating service (see LBCS Code 2422);
7.
Mailing and shipping outlets intended to serve businesses and employees in the development (see LBCS Codes 2455, 4180 and 4190);
8.
Motor freight terminals (see LBCS Code 4140);
9.
Off-street parking garages and lots incidental to businesses in this development (see LBCS Code 2640);
10.
Offices, general, directly related to primary use;
11.
Recreational facilities for employees of businesses in the development (see LBCS Code 5370);
12.
Retail showrooms for products of the businesses in the development;
13.
Residential quarters for bona fide caretakers or watchmen and their families, when essential for the operation of the business;
14.
Restaurants and food service facilities (see LBCS Codes 2510-2530);
15.
Security service office or station;
16.
Telecommunications towers and facilities, when collocated on existing structures as an accessory use (see Article XI. Telecommunications towers and facilities); and
17.
Warehouses and storage (see LBCS Code 3600).
(c)
Uses That May Be Allowed by Conditional Use Permit.
1.
Cluster commercial development (see LBCS Code 9955);
2.
Hotels and motels intended to serve visitors to businesses in the development (see LBCS Code 1330);
3.
Radio and television broadcasting stations, studios, or offices;
4.
Trade expositions (see LBCS Code 5240);
5.
Trade or business school (see LBCS Code 6140); and
6.
Transmitting and receiving facilities and towers for cellular communications systems and similar communications systems in accordance with Article VII of this ordinance.
(a)
Area Regulations. The minimum lot area in flexible space developments shall be 20,000 square feet.
(b)
Site Development Requirements. The minimum setback and frontage requirements for flexible space developments shall comply with Exhibit VIII-6.
Exhibit VIII-6: Site Development Requirements for Flexible Space Developments
(c)
Utilities.
1.
Utilities shall be located underground.
2.
Rooftop mechanical equipment shall be located or screened so that it is not visible from the street.
3.
Transformers, utility meters, junction boxes, conduits, and connections shall be enclosed or screened from view.
4.
HVAC equipment mounted on the ground shall be screened so that it is not visible from the street.
5.
Dumpsters shall not be located in front or exterior side yards and shall be screened from view with opaque fences, walls, or evergreen plantings.
(d)
Traffic and Pedestrian Circulation.
1.
Separate entrances to and separate roadways within the flexible space development shall be provided for trucks and automobiles, unless, in the opinion of the City Engineer, the number and size of trucks expected to serve the uses in the development can be accommodated safely on the road network used by automobiles. Separate entrances shall be clearly marked.
2.
Each occupant of a flexible space development shall have access only onto interior roadways.
3.
The development shall be laid out so that individual buildings have access onto interior streets. Individual buildings or occupants shall not be provided with separate access points onto exterior roadways. Entrance(s) to the development shall serve all occupants and visitors.
4.
The interior road circulation network shall be laid out to discourage cut-through traffic from adjacent developments or residential areas.
5.
Pedestrian and/or bicycle routes, lanes, or paths shall be provided within the development to accommodate pedestrian and/or bicycle traffic between transit stops, parking areas, and buildings. Street design shall provide for the safety of pedestrians and bicyclists by clearly marking routes with striping and/or delineating them through the use of contrasting materials (e.g., bricks or pavers).
6.
Where a flexible space development abuts a street with transit service past the development, the development shall include a bus stop with shelter, unless the general manager of the Greater Lynchburg Transit Company, or its successor company, determines that a bus stop is not appropriate.
7.
The number of curb cuts onto interior roadways that serve as entrances to parking lots shall be limited to no more than two per parking lot.
(e)
Parking and Loading Requirements.
1.
Parking spaces shall be provided as required in section 35.2-62 et seq. of this Zoning Ordinance.
2.
Handicapped and visitor/client/customer parking may be provided near the front entrance(s) of buildings. All other parking (i.e., employees, service personnel) shall be located at the side or the rear of the buildings.
3.
Parking shall be shared among occupants to the maximum extent feasible.
4.
No paving or parking facilities shall be located with 25 feet of any residential district.
5.
Truck loading areas or docks shall be located on the side of the building away from public view or screened with landscaping, opaque fences, walls, or doors.
(f)
Signs. Signs shall comply with the applicable requirements for the underlying district(s).
(g)
Exterior lighting. Exterior lighting shall comply with the standards established in section 35.2-65.
(h)
Landscaping.
1.
Where a flexible space development abuts a limited access highway, the area of the development abutting the highway shall be landscaped according to the requirements of section 35.2-56.7(c) (Building Bulk Softening).
(i)
Building Types and Materials.
1.
Types of buildings located in a flexible space development include: flex-tech, multitenant, office, and showroom, with space for storage, distribution, and related uses. These buildings are to be laid out in a business park or campus-like setting.
2.
Vegetative buffering as provided in section 35.2-63.10 (Buffering) of this ordinance shall be required between buildings in the flex space development and adjoining public right-of-way, single-household districts and two-household districts except where:
a.
Individual buildings are designed so they can be converted to other uses and reused;
b.
The main entrances of buildings are oriented toward the interior roadways, except for those buildings that are sited between the main exterior street and an interior roadway. These buildings may be oriented toward the exterior street. For buildings oriented toward an exterior street, the rear of the building shall be designed to complement the facades of adjacent buildings. A second entrance to accommodate employees and visitors may be provided on the side of the building facing the interior street;
c.
No portion of a building constructed of unadorned cinderblock or corrugated and/or sheet metal is visible from any exterior or interior roadway or from any adjacent residential or commercial development; and
d.
Buildings are designed to use to the greatest extent feasible building materials that are compatible with a business park or campus type of development, such as rock, stone, brick, and/or wood.
3.
No outdoor storage or processing shall be permitted in a flexible space development.
(j)
Erosion and Sediment Control. All flexible space developments shall comply with the requirements given in Article 16.1, of the City Code.
(k)
Stormwater Management. All flexible space developments shall comply with the requirements given in Article 16.2 of the City Code.
Prior to securing a Building Permit for any construction in a flexible space development, approval of a concept and final site plan shall be obtained. The final site plan shall conform to the concept plan approved for the flexible space development, and may be submitted for the entire site or a portion of the site if the development is to be phased. Procedures for review shall be the same as those outlined in section 35.2-14.2 of this Zoning Ordinance.
A corporate campus (see LBCS Code 9957) is a master planned mixed-use development under unified ownership or control that permits offices and industrial space, with retail, restaurants, lodging and residences as secondary support uses by right in an I-1 or I-2 district or through the Conditional Use Permit process in the B-5 or IN-2 districts. Limited residential development may be located in mixed-use buildings or in transitional areas abutting residential districts as provided herein.
No building, structure or land shall be used for any purpose except the following:
(a)
Residential development within mixed-use buildings (see LBCS Code 1130).
(b)
Professional, medical, scientific and technical offices/services (see LBCS Code 2400).
(c)
Manufacturing, processing or product assembly where all operations are contained within a structure. Warehousing and distribution facilities are allowed as an accessory to these uses (see LBCS Code 3100, 3200, 3320—3370 and 3400).
(d)
Scientific laboratories and research enterprises/facilities (see LBCS Code 2416 and 6514).
(e)
Finance, insurance, management, administrative and support offices and services (see LBCS Codes 2210 and 2230—2250).
(f)
Support uses, including hotels, motels and restaurants, provided that no such use may be established unless included in a phasing plan and that the square footage of such uses shall not exceed ten (10) percent of the total floor area of the project at any time (see LBCS Codes 1330, 2116, 2151—2154 and 2510-2530).
(a)
Exhibit VIII-7 establishes the maximum potential density and the maximum floor area ratio. The achievable density or intensity permitted for any particular lot may be limited by site conditions or other standards set forth in this Zoning Ordinance.
(b)
Density is the number of dwelling units per gross acre of lot area on the lot on which the residential units are located. If open space is reserved adjacent to and accessible to residential units, the open space area may be used in the calculation of residential density.
(c)
Floor area ratio shall apply to all non-residential uses excluding lodging and residences. It is measured by dividing the total building floor area (excluding lodging units and dwelling units) by the lot area. Lodging unit intensity is measured by the number of lodging units per acre of the lot on which the units are located.
(d)
For buildings with dwelling units or lodging units located above non-residential floor area, maximum residential unit or lodging accommodation unit density and the floor area ratio shall be calculated using the total lot area. For example: a one acre lot would be allowed to have up to 43,560 square feet (one acre) of non-residential floor area plus 24 lodging units plus 12 dwelling units.
Exhibit VIII-7: Intensity/Density Standards
(a)
Height. The maximum building height shall be 100 feet.
(b)
Height Transitions Abutting Residential Districts. Where a lot abuts a residential zoning district or a mixed-use project, the maximum building height shall be no taller than the maximum height of the abutting district within 100 feet of the property line. The building height may be increased by one foot for each additional one foot for the applicable portion of the building separated from the property line.
(c)
Building Orientation and Entries. In corporate campus developments entrances shall be located on the front of the building. All buildings shall have clearly defined, visible entrances, featuring no fewer than three of the following:
1.
Canopies or porticos
2.
Awnings
3.
Overhangs
4.
Recesses/projections
5.
Arcades
6.
Raised corniced parapets over the door
7.
Peaked roof forms or arches
8.
Outdoor patios
9.
Display windows
(d)
Building Materials. Vegetative buffering as provided in section 35.2-63.10 (Buffering) of this ordinance shall be required between buildings in the corporate campus and adjoining public right-of-way, single-household districts and two-household districts except where:
1.
Predominant wall materials have the appearance of brick, stucco or textured masonry;
2.
Predominant wall materials shall cover at least 80 percent of walls, exclusive of windows and doors; and
3.
Materials with the appearance of concrete block, smooth concrete, corrugated or standing seam metal are prohibited.
(e)
Building Articulation. Front and street-facing side facades greater than 100 feet in length, measured horizontally, shall incorporate wall plane projections or recesses having a depth of at least three percent of the length of the facade and extending at least 20 percent of the length of the façade.
(f)
Rooflines.
1.
Rooflines shall be varied in height at least every 100 linear feet. Hips, gables or changes in parapet elevation shall be used to provide relief in height.
2.
Gable and hip roofs, and parapets with cornices shall be used to conceal flat roofs and rooftop mechanical equipment from public view.
3.
The parapet design shall be a minimum of three feet in height and shall incorporate a three-dimensional cornice treatment.
(g)
Building Setbacks. Building setbacks shall be established at the time of concept plan and conditional use permit approval by the City Council.
(h)
Landscaping. Landscaping shall comply with the provisions of section 35.2-63 et seq. except as otherwise modified through the conditional use permit approval process.
(i)
Common and Civic Areas. Common and civic areas shall be established as follows:
1.
At least ten percent of the total project area shall be devoted to common and civic areas, which may include courtyards, plazas and landscape/buffering areas. Retention ponds with a minimum 4:1 (run to rise) side slopes, with walkways and seating areas may be counted towards the required common and civic areas.
2.
Formal clusters of small deciduous trees shall be planted in civic areas to provide shade.
3.
At least one small deciduous tree shall be planted for every 200 square feet of civic area.
4.
At least one large deciduous tree shall be planted for every 800 square feet of civic area.
(j)
Outdoor Storage. Outdoor storage, where authorized by the conditional use permit shall be screened as provided in this section.
1.
The storage of bulk commodities shall be consolidated into a single area located in a rear or side yard and visually screened by buildings, walls, fences and/or landscaping. Outdoor storage is prohibited within 50 feet of any street or residential zoning district.
2.
Screening shall include an opaque wall or fence enclosure measuring at least six feet high and no more than eight feet high.
3.
A minimum ten feet wide planting strip shall be provided along the wall with the following plant materials:
a.
Minimum one evergreen tree for every 40 linear feet of wall; and
b.
Minimum one shrub for every three linear feet of wall.
(k)
Fences and Walls. No fence or wall shall be established in any front or street side yard except as established in this section. Where used, masonry walls shall have graffiti-resistant paint or finishes.
1.
Wrought-iron or metal picket fencing with a maximum height of three feet may be used to delineate outdoor patios/eating areas in any location on a lot.
2.
Masonry wall finishes shall match the principal building material; decorative wall cap and offsets or columns shall be provided every 50 linear feet.
(l)
Parking and Loading. Parking and loading shall be located as required in Section 35.2-62 except as modified by this section.
1.
Parking lots which accommodate more than 100 vehicles shall be divided into a series of connected smaller lots and separated by roads, open areas, structures or landscape strips measuring at least ten feet in width and having at least one large deciduous tree planted every 40 linear feet.
2.
Pedestrian walkways shall be provided between all buildings and between buildings and parking areas and all out parcels. Walkways within parking areas shall be located in a manner to provide safe efficient movement of pedestrians. Walkways shall be located in a manner so that no parking space is further than 120 feet from a walkway. Walkways and crosswalks shall be distinguishable from drive aisles.
3.
All pedestrian walkways shall be designed to provide safe efficient access for people with disabilities. Ramps shall be provided between all walkways and all crosswalks.
4.
Truck access and parking areas shall be separate from car parking areas and located in the rear yard.
5.
Parking spaces shall not be located between buildings and a front or side street.
6.
Parking structures shall be located behind the primary structure.
7.
Required off-street parking shall be provided within a five-minute (one-quarter mile) radius of the site that it serves.
(m)
Loading. Loading standards shall comply with section 35.2-62.5 and the following standards.
1.
Loading and service dock areas shall be located to the rear or sides of a building, away from the main building entrance, or related high visibility areas.
2.
Loading docks shall not be located between a building and a residential zoning district unless there is a minimum 100 feet setback between the loading dock and the residential district and the setback includes a landscape buffer and masonry wall.
3.
Loading spaces, their access drives and maneuvering areas shall be located and designed so that their use does not impede the normal use of parking spaces and access drives.
4.
Loading and service docks shall be screened by a masonry wall measuring not less than six feet in height and not more than eight feet in height or a landscape screen consisting of evergreen hedge that will measure at least five feet in height within one year of planting.
(n)
Bicycles.
1.
Internal bicycle circulation systems and easements shall be integrated into site design and connect to existing and future bicycle routes and trails.
2.
Bicycle lanes shall be provided along all collector or arterial streets internal to the development and shall be at least three feet in width. This provision may be waived where multi-purpose trails are provided.
3.
Bicycle racks shall be provided in accordance with section 35.2-62.6 of this Ordinance.
LAND USE DEVELOPMENT PATTERNS
Authorized residential cluster subdivision development (see LBCS Code 9951) may be approved in the R-1, R-2, R-3 and R-4 zoning districts subject to compliance with the requirements of this section and applicable subdivision regulations.
Density on the site shall not exceed that permitted in the underlying zoning district.
Uses shall comply with the use regulations of the applicable zoning district.
Unless otherwise provided in this section, cluster development shall comply with regulations of the applicable zoning district governing height, parking, landscaping, signs, lighting, access and public improvements.
(Ord. No. O-17-013, § 1, 2-14-17)
Access to individual lots shall be provided via an internal circulation system, which may include public streets, alleys or private drives. Private drives shall not serve more than five (5) dwelling units.
(a)
Where clustering of dwellings is employed common open space, properties and facilities shall be placed in the ownership and control of a property owners' association capable of providing adequate maintenance in accordance section 35.2-10.15 of this Zoning Ordinance.
Single-household and duplex cluster development shall comply with the standards established in Exhibit VIII-1.
Exhibit VIII-1: Standards for Single-Household and Duplex Clusters
(Ord. No. O-17-013, § 1, 2-14-17)
Development of townhouse lots (see LBCS Code 1113) shall comply with the lot development standards established in Exhibit VIII-2 in addition to the standards established for parking, landscaping and other site improvements established in Article VI. Townhouses may be established by conditional use permit in the R-3, B-1, B-3 and B-5 districts and as a permitted use in the R-4 and IN-2 districts.
Exhibit VIII-2: Standards for Townhouse Development
Open space and common areas provided in conjunction with a townhouse development shall comply with the standards established in section 35.2-80.6.
(a)
Traditional neighborhood development (TND) (see LBCS Code 9952) provides opportunities for the creation of new neighborhoods designed along the traditions of small town and urban neighborhood development prevalent in the United States from colonial times until the 1940's. These design traditions created neighborhoods and communities that fostered strong connections between people as they lived, worked, shopped, learned, recreated and worshiped. Because TNDs are tightly knit and incorporate an integrated mix of uses, they do not meet the development standards of the City's existing zones. Therefore, this TND section is provided to offer a flexible set of land use and design regulations based on performance standards that will allow traditional neighborhood development subject to site-specific City review. Where TNDs are deemed appropriate by the City Council, all dimensional specifications, setback, buffering, and landscaping requirements, and location of parking facilities and recreation facilities prescribed elsewhere in this ordinance are herein replaced by an approval process in which the approved TND plan and design guidelines become the basis for continuing land use controls.
(b)
TNDs may be established by conditional use permit in the R-1, R-2, R-3, R-4, B-1, B-3, B-4, B-5 and IN-2 districts.
To carry out the intent of this section, a TND shall achieve the following objectives:
(a)
The design of the neighborhood allows residents to work, shop, and carry out many of life's other activities within the neighborhood.
(b)
A mix of land uses is provided. The proximity of uses allows residents to walk, ride a bicycle, or take transit for many trips between home, work, shopping, and school.
(c)
A variety of housing types is provided at a range of densities, types (multi-household, townhouse, and single-household), and costs. Neighborhoods are heterogeneous mixes of residences in close proximity to commercial and employment uses.
(d)
The neighborhood includes a retail, office, employment, services, and/or entertainment core to provide economic and social vitality and a major focus and meeting place in the community.
(e)
The circulation system serves many modes of transportation and provides choices for alternative transportation routes. Streets, alleys, and pedestrian and bike paths connect to the surrounding area to the extent possible. Streets and alleys generally follow a grid pattern to provide these route choices and connections. Traffic calming techniques may be used to reduce vehicle speed and increase pedestrian and bicycle safety.
(f)
The overall intensity of development is designed to be high enough to support transit service.
(g)
A system of parks, open spaces, civic, public, and institutional uses is included to create a high quality of life and civic identity for the community.
(h)
The cluster concept is embraced so as to concentrate development in environmentally suitable areas and to preserve and protect important environmental and cultural resources.
(a)
Minimum Area. The minimum area required to qualify for a traditional neighborhood development shall be 30 contiguous acres of land. Where the applicant can demonstrate that the characteristics of a proposed project site will meet the objectives of this article, the City Council may consider projects of less acreage when considering a TND application.
(b)
Location of Traditional Neighborhood Developments. A traditional neighborhood development may be established by a conditional use permit in the R-C, R-1, R-2, R-3 and R-4 residential districts and the B-1 and B-3 business districts, where the applicant can demonstrate that the characteristics of the property will meet the objectives of this section and are consistent with the Comprehensive Plan of the City of Lynchburg.
(c)
Management and Ownership of Common Open Space, Common Property and Other Common Facilities in Traditional Neighborhood Developments. All common open space properties and common facilities, such as alleys, not deeded to the City shall be preserved for their intended purpose as expressed in the approved concept plan. The developer shall provide for the establishment of a property owners' association to ensure the maintenance of all common open space properties and common facilities. The property owners' association shall be established in accordance section 35.2-10.15 of this Zoning Ordinance
(d)
Fee schedule for traditional neighborhood development review. The fees for TND review and action shall be the same as those for planned unit developments.
All uses within a traditional neighborhood development are determined by the provisions of this section and the approved conditional use permit for the project.
(a)
Residential uses.
1.
A variety of residential uses shall be provided in the traditional neighborhood development. Residences may be of any design and type, though the range of styles and materials shall be set by architectural design guidelines submitted with the TND application and made a part of the specific regulations governing the development of the TND.
2.
In developing a balanced community, the provision of housing with a broad range of prices shall be deemed to be most in compliance with the intent of this article.
3.
Generally, high density housing types (multi-household and single-household attached housing) shall be located within one-quarter mile of the core of the Development. Satellite high density residential areas are permitted if used to provide a transition between the neighborhood and abutting off-site high density housing areas, non-residential areas, or major transportation corridors. Satellite areas may include a commercial area or civic uses.
4.
A maximum of 80 percent of the net development area shall be designated for residential uses. The total land area designated for residential use shall be equal to or exceed the total area designated for commercial/service and restricted industrial combined.
5.
Of the total number of residential units to be constructed, no more than 70 percent shall be in one of the following categories:
a.
Single-household detached (see LBCS Code 1111).
b.
Single-household attached (duplexes and townhouses) (see LBCS Codes 1120 and 1113).
c.
Multi-household (see LBCS Code 1130).
6.
The maximum net density as measured in dwelling units per acre in the traditional neighborhood development shall not exceed the maximum net density set in the R-4 district. The acreage to be included in this calculation shall be all land area devoted to residential, associated park and open space uses, and associated alleys.
(b)
Commercial and Service Uses.
1.
Each traditional neighborhood development neighborhood shall have a core made up primarily of the uses permitted in the B-1 and B-3 districts and located within one quarter (1/4) mile of the identified center of the community. Small-scale satellite commercial/service uses are also permitted in the TND neighborhood outside the core area as long as in total they comprise less than one-third the gross commercial/service building square footage of the core.
2.
In addition to B-1 and B-3 permitted uses, the following conditional, commercial and service uses shall be permitted if specifically included in the approved TND plan, otherwise they will be conditional uses once a TND plan is approved:
a.
Automobile service stations (see LBCS Code 2117a);
b.
Commercial recreation establishments, such as dancing, bowling, billiards and the like, when located in enclosed buildings (see LBCS Codes 5320, 5340, 5371, 5380 and 5390);
c.
Temporary fairs, exhibitions, and circuses (see LBCS Code 9921);
d.
Tourist homes or bed and breakfasts (see LBCS Code 1310); and
e.
Veterinarian hospitals without outdoor kennels, including facilities for the sale and care of animals normally kept as pets but not farm animals (see LBCS Code 2721).
3.
The maximum floor plate for any commercial/service building shall be 20,000 square feet, though this limitation may be waived during the conditional use permit approval process upon determination that a larger building as designed will not dominate the neighborhood or its streetscape.
4.
A minimum of five percent and a maximum of 30 percent of the net development area shall be designated for commercial/service uses.
(c)
Restricted Industrial Uses.
1.
Traditional neighborhood developments may include industrial uses permitted under the I-1, restricted industrial district.
2.
A maximum of 30 percent of the net development area may be designated for restricted industrial uses.
3.
The maximum floor plate for any industrial building shall be 20,000 square feet, though this limitation may be waived during the concept plan approval process upon determination that a larger building as designed will not dominate the neighborhood or its streetscape.
(d)
Civic Uses.
1.
The following civic uses shall be permitted if specifically included in the approved traditional neighborhood development plan, otherwise they will be conditional uses once a TND plan is approved:
a.
Child and adult care centers (see LBCS Code 6562);
b.
Cemeteries and columbaria (see LBCS Codes 6722 and 6744; note that these uses are allowed by right if accessory to a church or other place of worship);
c.
Churches and other places of worship, including parish houses and educational buildings (see LBCS Code 6600);
d.
Clubs and fraternal organizations (see LBCS Code 6830);
e.
Community swimming pools (see LBCS Codes 5371 and 5372);
f.
Convents and monasteries (see LBCS Code 6600);
g.
Group homes (see LBCS Code 6522);
h.
Hospitals (see LBCS Code 6530);
i.
Libraries (see LBCS Code 4242);
j.
Museums and art galleries (see LBCS Code 5200);
k.
Nursing homes and assisted living facilities (see LBCS Code 1200);
l.
Public buildings, such as branch governmental centers, meeting halls, post offices (see LBCS Codes 4180 and 6300; note that City-owned buildings are allowed by right);
m.
Public or community recreational facilities not operated for profit (see LBCS Codes 5371 and 5372);
n.
Schools and colleges for general education (see LBCS Codes 6110, 6120 and 6130); and
o.
Other community facilities and civic uses defined in Article XI.
2.
A minimum of two percent of the net development area shall be designated for civic uses. Public utility uses shall not be included in this percentage.
(e)
Parks, Squares and Other Open Space.
1.
Since net densities of individual blocks may be high in a traditional neighborhood development, ample community open space shall be provided in parks, squares, and common open space distributed throughout the TND. In order for a parcel to be considered a park, a square, or common open space, it must be at least one-quarter acre in size. No residential unit of the neighborhood shall be located more than one-quarter mile (1,320 feet) from the boundary of a park, square, or common open space property. This requirement may be waived by City Council during the conditional use permit approval process in instances of unusual parcel shapes, the provision of ample private open space, or other mitigating factors.
2.
A minimum of ten percent of the net development area shall be designated for park, square, and/or common open space uses. At least 1.0 acre total of parks or squares shall be provided in the core area of the TND.
(f)
Accessory and Other Associated Uses. The following accessory uses and structures are permitted within a traditional neighborhood development:
1.
Private and public garages (see LBCS Code 2640);
2.
Private and public parking lots or structures (see LBCS Code 2640);
3.
Signs in commercial/service and restricted industrial areas according to section 35.2-64 et seq. and the approved traditional neighborhood development design guidelines, provided no sign shall exceed the number and maximum area as established in Section 35.2-64.14.
4.
Signs in residential, civic, and public use areas according to section 35.2-64.12.
In a traditional neighborhood development, the fronts of buildings face on the public realm of the community (the sidewalks, streets, public parks and squares), while private yards and off-street parking are located to the rear. Therefore, buildings are to have minimal setbacks from the front property line. Commercial/service, multi-household residential, and single-household attached residential buildings are generally recommended to have front setbacks of zero to ten feet, and single-household detached residential buildings, front setbacks of zero to 25 feet. The TND design guidelines shall set forth the required minimum and maximum setbacks for proposed TND buildings.
(a)
Streets, Alleys, Paths, and Block Patterns in Traditional Neighborhood Developments.
(b)
The transportation system in traditional neighborhood developments shall be modeled on a grid street and alley pattern modified to accommodate the topography of the site and parcel shape. Culs-de-sac should be avoided to the extent possible and shall not exceed 20 percent of the total length of streets in the traditional neighborhood development, excluding alleys.
(c)
Private streets and alleys, built to standards as approved by the technical review committee, are permitted in TNDs. Such private streets and alleys are permitted to serve multiple lots and uses. In other words, lots and uses are not required to have their own separate entrance on to a public street and may share a private street or alley entrance on to a public street. Private streets and alleys shall be maintained by the homeowners' association.
(d)
All lots shall front on a public or private street or on a square. Alleys shall serve only the rear or sides of lots or uses.
Exhibit VIII-3: Summary of TND Size, Land Use, Setback,
Density, and Bulk Standards
(e)
Streets, alleys, paths, and block patterns in traditional neighborhood developments.
(f)
The transportation system in traditional neighborhood developments shall be modeled on a grid street and alley pattern modified to accommodate the topography of the site and parcel shape. Culs-de-sac should be avoided to the extent possible and shall not exceed 20 percent of the total length of streets in the traditional neighborhood development, excluding alleys.
(g)
Private streets and alleys, built to standards as approved by the technical review committee, are permitted in TNDs. Such private streets and alleys are permitted to serve multiple lots and uses. In other words, lots and uses are not required to have their own separate entrance on to a public street and may share a private street or alley entrance on to a public street. Private streets and alleys shall be maintained by the home owners' association.
(h)
All lots shall front on a public or private street or on a square. Alleys shall serve only the rear or sides of lots or uses.
(i)
In the TND core area, the blocks created by the grid of streets shall have a maximum block perimeter of 1,600 feet. Where slopes exceed ten percent, the block perimeter may exceed 1,600 feet to reduce the number of streets constructed perpendicular to the steep slopes provided that pedestrian access is provided across any block that exceeds 500 feet in length. Such access shall be provided within an easement of not less than ten feet in width.
(j)
In areas where multi-household residential, commercial/service, and restricted industrial uses predominate, sidewalks shall be provided on both sides of the street. In single-household detached and single-household attached residential areas, sidewalks shall be provided on at least one side of the street.
(k)
Pedestrian and/or bicycle routes, lanes, or paths shall be provided to connect all uses and reduce motor vehicle use. Street design shall provide for the safety of pedestrians and bicyclists.
(a)
Parking and loading spaces shall be provided as required in section 35.2-62 et seq. of the City Code except that on-street as well as off-street parking spaces shall be counted toward satisfaction of the requirements. On-street parking spaces assigned to a building or use shall be those spaces directly abutting the lot containing that building or use. All required handicapped parking spaces shall be provided off-street.
(b)
Shared parking shall be permitted in accordance with the shared parking provisions of section 35.2-62.4(d).
(c)
Off-street parking and loading spaces shall be located behind or to the side of buildings and may be served directly or indirectly by alleys. The TND design guidelines shall specify how off-street parking and loading areas shall be landscaped and screened from public streets.
Traditional neighborhood developments are permitted only by conditional use permit as established in section 35.2-11 of this ordinance.
Prior to securing a Building Permit for any construction in a traditional neighborhood development, approval of a concept plan and final site plan shall be obtained. The final site plan shall conform to the conditions of the TND conditional use permit and may be submitted for the entire site, or a portion of the site if the development is to be phased. Procedures for review of the final site plan shall be the same as those established in section 35.2-14.2.
The procedures of section 35.2-12 of the Zoning Ordinance shall be followed if changes to the traditional neighborhood development conditional use permit are requested or if the applicant wishes to appeal any decision of any City official.
Planned unit developments (PUDs) (see LBCS Code 9953) provide flexible land use and design regulations through the use of performance criteria so that small-to-large scale neighborhoods or portions thereof may be developed within the City that:
(a)
Incorporate a variety of residential types meeting the full range of needs by Lynchburg residents;
(b)
Contain both individual building sites and common property which are planned and developed as a unit;
(c)
Are designed and organized to be capable of use and operation as a separate entity without necessarily needing the participation of other building sites or other common property in order to function as a neighborhood;
(d)
Incorporate innovations in residential development so that the growing demands for housing at all economic levels may be met by greater variety in type, design, and siting of dwellings;
(e)
Encourage conservation and more efficient use of land;
(f)
Provide economies in the construction, maintenance and the provision of services;
(g)
Provide amenities for occupants and the general public;
(h)
Improve mobility for all modes of transportation; and
(i)
Preserve natural conditions and facilitate innovative environmental design.
Planned unit developments (see LBCS 9953) may be established by conditional use permit in the R-1, R-2, R-3 and R-4 districts.
The City recognizes that while the standard zoning and the subdivision regulations are appropriate for the regulation of land use in areas or neighborhoods that are already substantially developed, these controls can represent a type of pre-regulation, regulatory rigidity and uniformity. Thus, where development flexibility is deemed appropriate by the City Council, all dimensional specifications, setback requirements, buffering requirements, landscaping requirements, location of off-street parking facilities and location of recreation facilities elsewhere in this ordinance are herein replaced by an approval process in which an approved concept plan becomes the basis for continuing land use controls.
To carry out the purposes of this section, a planned unit development shall achieve the following objectives:
(a)
A choice in types of environment; occupancy tenure (e.g., cooperatives, individual ownership, condominium, leasing); types of housing (e.g., detached, attached, small houses); lot sizes (e.g., conventional and clustered lots); and community facilities available to existing and potential residents at all economic levels.
(b)
More usable open space and recreation areas.
(c)
The preservation of trees, outstanding natural topography and geologic features and prevention of soil erosion.
(d)
A creative use of land and related physical development which allows an orderly transition of undeveloped land to urban areas.
(e)
An efficient use of land resulting in smaller networks of utilities and streets, thereby lowering housing costs.
(f)
A development pattern in harmony with the objectives of the Lynchburg Comprehensive Plan.
(g)
A more desirable environment than would be possible through the strict application of other articles of the Zoning Ordinance.
(a)
Minimum Area. Generally, the minimum area required to qualify for a planned unit development shall be five contiguous acres of land. Where the applicant can demonstrate that the characteristics of his holdings will meet the objectives of this article, the City Council may consider projects with less acreage.
(b)
Ownership. The tract of land for a project may be owned, leased, controlled or under option by a single person or corporation or by a group of individuals or corporations. An application must be filed by the owner or jointly by owners of all property included in the project or by the property owner's authorized agent with the power of attorney to sign the petition. In case of multiple ownership, the approved conditional use permit shall be binding on all owners.
(c)
Location of Planned Unit Developments. A planned unit development may be established by a conditional use permit in any residential district of the City where the applicant can demonstrate that the characteristics of his holdings will meet the objectives of this article and is consistent with the Comprehensive Plan of the City of Lynchburg.
(d)
Management and Ownership of Common Open Space, Property and Facilities in Planned Unit Developments. All privately owned common open space designated in the approved final site plan shall be permanently preserved and maintained as open space. All deeds for property in a planned unit development shall include appropriate restrictions to ensure that all open space is permanently preserved as open space as shown on the approved conditional use permit. The property owner's association shall be established in accordance section 35.2-10.15 of this Zoning Ordinance.
All uses within an area designated as a planned unit development are determined by the approved conditional use permit of the project concerned in accordance with the provisions of this section.
(a)
Residential Uses. Residences may be of any variety and type. In developing a balanced community, the use of a variety of housing types shall be deemed to be most in compliance with the intent of this article. However, at least 20 percent of the total number of dwelling units within any planned unit development shall be in single-household, detached structures. City Council may reduce or eliminate the mandatory single-household detached structure requirement.
(b)
Accessory Commercial, Service and Other Nonresidential Uses. Commercial, service and other nonresidential uses may be permitted (or required) where such uses are designed to serve the residents of the planned unit development. The following proportions are deemed to be in keeping with the overall intent of the planned unit development concept:
1.
Where the planned unit development contains 100 or more dwelling units, a maximum of 2,400 square feet of floor area for every 100 dwelling units may be used for limited commercial and/or service purposes. Such commercial or service area may be in separate buildings or incorporated within two-household or multi-household structures or in a suitable combination of these alternatives.
2.
Where the planned unit development contains 300 or more dwelling units, a maximum of one-half acre of land for every 100 dwelling units may be used for commercial and/or service purposes.
(c)
Accessory and Associate Uses. Customary accessory or associated uses such as private garages, storage spaces, recreational and community activities, churches, and schools shall also be permitted as appropriate to the planned unit development as provided in section 35.2-71 and the terms of the conditional use permit approval.
(a)
Basic Density Calculations. The total number of dwelling units permitted shall be based on the densities established in the Comprehensive Plan for the applicable future land use category. Land designated for mixed-use development in the Comprehensive Plan shall not exceed residential densities of 24 dwellings per acre except as provided in paragraph (b).
(b)
Density Bonus for Design Elements. The number of dwelling units permitted may be increased through the density bonus provisions established for the R-4 district in section 35.2-44.4(b) (Density and Height Bonuses).
Large scale retail establishments (see LBCS Code 9954) are critical to the economic vitality of the City, convenience of citizens and ensuring that the City maintains its position as the economic center of the region. While retail establishments are important, their size can greatly impact the general health, safety and welfare of the City in terms of aesthetics, stormwater management, air pollution, light pollution, traffic, walkability and neighborhood compatibility. It is the intent of this ordinance to promote economic development and redevelopment which utilizes high-quality site, building design and land use to further the goals and objectives of creating accessible and attractive commercial districts, sustaining nature in the City, reinforcing neighborhood character, promoting a diverse, vital economy and providing effective support systems as stated in the City's Comprehensive Plan.
(a)
The provisions of this ordinance shall apply to large scale retail establishments having a cumulative gross floor area of 75,000 new square feet or greater in floor area at time of site plan approval, whether such new gross floor area is contained entirely within a freestanding building or is within two or more buildings, whether located on a single lot or contiguous lots owned or operated as associated, integrated or cooperative business enterprises.
(b)
The requirements of this ordinance shall be in addition to all other applicable ordinances, regulations and requirements, such as the erosion & sediment control ordinance, stormwater management ordinance, landscaping ordinance and sign ordinance. In the event that this ordinance and other applicable regulations of the Zoning Ordinance differ, the regulations of this ordinance shall apply.
(c)
Large scale retail establishments shall be allowed as a permitted use in the B-3, B-4, B-5 and IN-2 districts.
(a)
The applicant shall submit a traffic study detailing impacts on the City's road network and traffic circulation for the site. The traffic study shall be prepared by a firm qualified to conduct traffic engineering studies. The methodology for the required traffic study shall be approved by the City's transportation engineer prior to commencement of the study. Technical guidelines for traffic studies may be obtained from the City's transportation engineer.
(b)
The findings and recommendations for needed improvements as determined by the traffic study shall be made by the developer. Needed improvements may include but are not limited to: right and left turn lanes, sidewalks, new or modification of existing signals, trails or trail connections, sight distance improvements, street lighting, bus stops or transit pullout bays, access management techniques, and transportation systems management. Only those improvements where a clearly demonstrated nexus between the development and the need for the improvement exist shall be required.
(c)
Shared direct access and internal vehicle circulation shall comply with the standards in section 35.2-66.
(d)
Truck traffic shall be separated to the greatest extent possible from vehicular, pedestrian and bicyclist traffic.
(e)
Entrances to the site shall be designed to maximize pedestrian, bicyclist and vehicular safety, maximize efficient traffic circulation and minimize the impact on adjacent neighborhoods.
(f)
Adequate stacking for vehicles shall be provided at the access points to and from parking areas.
(g)
Provisions for mass transit shall be made in the form of appropriately placed benches and shelters within the development or along public streets.
(h)
Pedestrian walkways shall be provided between all buildings and between buildings and parking areas and all out parcels. Walkways within parking areas shall be located in a manner to provide safe efficient movement of pedestrians. Walkways shall be located in a manner so that no parking space is further than 120 feet from a walkway. Walkways and crosswalks shall be distinguishable from drive aisles.
(i)
All pedestrian walkways shall be designed to provide safe efficient access for people with disabilities. Ramps shall be provided between all walkways and all crosswalks.
Sidewalks shall be provided along the property frontage of all public streets. Connections between the sidewalk and internal walkways shall be provided.
Lighting shall comply with the standards established in section 35.2-65 except that in no instance shall light poles exceed 35 feet in height.
(a)
Roofs. Parapets shall conceal flat roofs and all rooftop equipment such as heating ventilation and air conditioning (HVAC) units from street level view.
(b)
Entryways. The building shall have clearly defined, highly visible entryways.
(c)
Building façade. Building facades greater than 150 feet in length measured horizontally and visible from a public street, shall incorporate wall plane projections or recesses having a depth of at least three feet to break up the expansiveness of the exterior. All recesses shall be properly lit to encourage a safe environment.
(d)
Outdoor vending areas. Outdoor vending areas shall be incorporated into the facade of the building.
(e)
Service areas incorporated into overall plan. Loading docks, truck parking, outside storage, cargo containers, trash collection, utility meters, HVAC equipment, trash collection, and other service functions shall be incorporated into the overall design and landscaping so that the visual and acoustical impacts of these functions screened from view of public / private streets and all adjacent properties (unless those adjacent uses are other loading areas, truck parking areas and storage areas) and no attention is attracted to the functions by the use of screening materials that are different from or inferior to the principal materials of the building and landscaping.
(f)
Buildings and sites shall be designed using crime prevention through environmental design (CPTED) strategies.
(g)
In all parking areas that are in excess of that required by section 35.2-62 et. seq., off-street parking and loading shall implement practices that will allow 25 percent of the stormwater attributable to the parking area for the one-year storm to infiltrate to the soil below. In cases where soil quality or other limiting factors will not allow for adequate infiltration, filtering practices with underdrains may be used as an alternative, subject to approval by the Zoning Administrator.
(Ord. No. O-17-013, § 1, 2-14-17)
Cluster Commercial Developments (CCDs) (see LBCS Code 9955) are intended to provide for flexibility in the planning of certain tracts of land, under single or multiple ownership, through the modification of certain lot, setback, and use restrictions. Developments under these regulations should provide for increased amenity, safety, and other public and private benefits, as well as reduced public and private costs. CCDs are generally characterized by a unified or planned clustering of development served by common parking areas with a common means of ingress and egress. These Developments should be designed to mitigate potential increases in traffic congestion through enhanced pedestrian access between uses within the CCD and to reduce distractions from such sources as signs and artificial lighting.
Within any cluster commercial development, no lot, building, or structure shall be used and no building shall be erected that is intended or designed to be used in whole or in part for any industrial or manufacturing purpose.
Subject the prohibitions in section 35.2-85.2, uses permitted by right in the R-3 through B-5 districts will be permitted through the Conditional Use Permit approval process in accordance with regulations contained herein.
Cluster commercial development districts may be established in accordance with the regulations of this section and section 35.2-11, Applications Requiring Public Hearings Before City Council, in locations that:
(a)
Are consistent with the Comprehensive Plan of the City of Lynchburg and located in areas designated for the following future land uses: Neighborhood Commercial, Community Commercial, Mixed Use and Institution;
(b)
Located in any B-1, B-3, B-5, and IN-2 zoning district by conditional use permit;
(c)
Are located within one-quarter mile of an existing or planned transit route and have direct pedestrian access to the route.
(a)
CUP and Concept Plan Required. No development, including the filing of a subdivision plat, within this a cluster commercial development shall be commenced until a Concept Plan and Conditional Use Permit have been approved by the City Council pursuant to section 35.2-11 (Applications Requiring Public Hearings Before City Council). Final approval of the conditional use permit is contingent upon approval of the final site plan.
(b)
Final Site Plan Required. Before any permit shall be issued for the erection of a permanent building in a proposed cluster commercial development may be issued, final site plan approval shall be required in accordance with section 35.2-14.2. (Site Plans).
(a)
General Standards. Cluster commercial developments shall comply with the site development standards established in Exhibit VIII-4 and subsequent provisions of this section.
Exhibit VIII-4: Cluster Commercial Development Standards
(b)
Parking Requirements.
1.
Required parking spaces shall be provided within the perimeter of the cluster commercial development and no further than 500 feet from the facilities to be served. Off-street parking and loading areas shall be screened from residential areas and shall be designed to produce the minimum possible interference with pedestrian circulation within the development.
2.
On-street parking shall be encouraged and shall count towards required parking for uses on abutting sites.
3.
Parking lots shall be located in the middle of blocks and shall be located behind the front building lines of structures.
4.
Shared parking shall be encouraged in accordance with the shared parking provisions of section 35.2-62.4(d).
(c)
Access and Circulation.
1.
Interior vehicular circulation and access shall comply with the provisions of section 35.2-66 et seq. A CCD shall be subject to the intersection visibility standards of the B-4 district where buildings are located within five feet of streets.
2.
To improve connectivity between uses within the CCD, maximum block length within the CCD shall be 400 feet unless convenient and safe pedestrian cross-block access will be provided to mitigate the impacts of longer blocks.
3.
Sidewalks are required pursuant to section 35.2-67.
(d)
Utilities. All utilities within a CCD shall be located underground.
(e)
Concentration of Development. Building entrances along streets shall be separated by no more than 150 feet from the next building entrance along a block face.
As described in the City's Comprehensive Plan, the demand for industrial and commercial space is changing. At this time, the demand is for concentrations of industrial, office, and technology uses where the owners of one business can interact with other complementary businesses in close proximity. By encouraging the clustering of complementary and related uses in flexible space developments (see LBCS Code 9956), the City seeks to preserve and expand the City's employment base, concentrate infrastructure investment, and minimize potential use conflicts. While limited commercial uses may be appropriate to serve the needs of employers and employees in these developments, retail and service uses should be limited.
To carry out the intent of this section, a flexible space development shall achieve the following objectives:
(a)
These developments are intended to promote the efficient use of developable lands by clustering similar and complementary land uses in close proximity to one another. A flexible space development shall resemble and function like a well-planned business park.
(b)
These developments shall be substantially consistent with the goals and objectives of City's Comprehensive Plan and the Future Land Use Map.
(c)
Land uses incorporated in these developments will generate moderate levels of truck traffic and be minimal sources of noise, vibration, dust, air and water pollution, or other nuisances so as to limit impacts on neighboring areas.
(d)
Circulation patterns will, to the greatest extent feasible, separate truck traffic from automobiles, bicycles, and pedestrians.
(e)
Natural buffer zones shall be preserved and/or created, as needed, between flexible space developments and surrounding residential areas.
(f)
Preservation of trees, outstanding natural topography, and geologic features is strongly encouraged. Soil erosion is to be prevented.
(g)
Regional stormwater management practices shall be followed.
(h)
Large-scale retail uses are not permitted in flexible space developments.
(i)
Provision of at least one amenity to encourage business development is required. Examples include, but are not limited to, bike paths, health trails, outdoor recreation areas, sidewalks, and other amenities.
(j)
Environmentally sustainable development through green building design and innovative site design is encouraged.
(k)
Renovation and adaptive reuse of existing structures and/or developments through redesign, renovation, and repositioning are encouraged.
(l)
Isolated residential uses remaining in areas covered by these developments shall gradually be removed or relocated.
(a)
Minimum Area. Generally, the minimum area required to qualify for a flexible space development shall be five contiguous acres of land. Where the project proponent can demonstrate that the characteristics of a proposed project site will meet the objectives of this article, the City Council may consider projects of less acreage.
(b)
Location of Flexible Space Developments. Flexible space developments are permitted by right in I-1, restricted industrial districts, and I-2, light industrial districts. Flexible space developments are permitted in B-5, general business districts, by conditional use permit (CUP), where the project proponent can demonstrate that the characteristics of the property will meet the objectives of this section and are consistent with the City's Comprehensive Plan.
(c)
Ownership. The tract of land for a flexible space development may be owned, leased, controlled, or under option by a single person or by a corporation or by a group of individuals or corporations. An application must be filed by the owner or jointly by owners of all property included in the development or by the property owner's authorized agent with the power of attorney to sign the application. In case of multiple ownership, the approved site plan shall be binding on all owners.
(d)
Concept Plan. A concept plan for the overall site will be prepared and submitted for review by the planning division and the technical review committee (TRC). Once the concept plan has been approved by the City Council or City Planner, a final site plan will be submitted to the City Planner for review and approval. This final site plan may be prepared for each phase of a phased development. Final site plans shall be in substantial compliance with the concept plan.
(e)
Management and Ownership of Common Open Space and Other Common Facilities. All privately owned common open space and common facilities designated in the approved final site plan shall be permanently preserved and maintained as open space or common facilities. All deeds for property in a flexible space development shall include appropriate restrictions to ensure that all open space and common facilities are permanently preserved as open space as shown on the approved final site plan. The property owners' association shall be established pursuant to section 35.2-10.15 of this Zoning Ordinance. Flexible space developments with one owner will not require a property owners' association.
(f)
Fee Schedule for Flexible Space Development Review. The fees for flexible space development review and action shall be the same as those for planned unit developments.
Exhibit VIII-5: Illustration of a Hypothetical Flexible Space Development
All uses within a flexible space development are determined by the provisions of this section and the approved site plan of the project.
(a)
Permitted uses by right include any use that meets the objectives of section 35.2-86.2 including, but not limited to, the manufacturing, assembly, distribution, repair, and servicing of:
1.
Apparel and accessories (see LBCS Codes 3130 and 3140);
2.
Artisan and craft work (see LBCS Codes 3410-3430);
3.
Automobile and truck parts (see LBCS Code 3370);
4.
Building and construction materials, supplies, and equipment (see LBCS Codes 3320, 3330, 3240 and 3350);
5.
Carpentry and cabinet making shops (see LBCS Code 7310);
6.
Computers, business machines, parts, and accessories (see LBCS Code 3360);
7.
Contractors' establishments, offices, and display rooms, but not equipment storage yards or plants, or rental equipment (see LBCS Code 7300);
8.
Data switching and processing equipment and services (see LBCS Code 4244);
9.
Electrical appliances, lighting, testing, transmission, and distribution equipment (see LBCS Code 3350);
10.
Employment service or agency (see LBCS Code 2423a);
11.
Engineering, professional, research, and scientific instruments and equipment, photographic and optical goods, watches and clocks, parts and supplies (see LBCS Code 2410);
12.
Fabric products and supplies (see LBCS Code 3130);
13.
General hardware and hand tools (see LBCS Codes 3350 and 3450);
14.
Home and office furnishings, fixtures, and equipment (see LBCS Codes 3230 and 3430);
15.
Medical equipment, instruments, and supplies (see LBCS Code 3360);
16.
Metal products and machinery, metal finishing (see LBCS Codes 3350 and 3450);
17.
Musical instruments and parts (see LBCS Code 3420);
18.
Office buildings with a minimum of 7,200 square feet each of gross floor area (see LBCS Code 2400);
19.
Optical equipment (see LBCS Codes 3330 and 3360);
20.
Packaging and paper products (see LBCS Code 3220);
21.
Personal care products (e.g., cosmetics, toiletries) (see LBCS Code 3320);
22.
Plastics (see LBCS Code 3310);
23.
Printing, publishing, copying, and binding (see LBCS Code 3220)
24.
Research, development, testing, medical, and dental laboratories (see LBCS Codes 2410 and 6513);
25.
Signs and advertising displays (see LBCS Code 3440);
26.
Sporting and athletic equipment, toys, and games (see LBCS Code 3420);
27.
Static transformer stations, transmission lines, gas and water mains, conduits for the transmission of electric energy including telephone, telegraph, and noncommercial radio and television poles and appurtenances thereto (see LBCS Codes 3320-3360); and
28.
Telephone exchanges (see LBCS Code 4240).
(b)
Permitted Accessory Uses. The following uses are permitted when serving as an accessory use to one or more of the by-right uses listed in section 35.2-86.4:
1.
Banks, credit unions, and similar establishments (see LBCS Code 2110);
2.
Bus and other transit stations (see LBCS Code 4151-4154);
3.
Convenience and service establishments, such as, but not limited to, barber shops, beauty parlors, convenience stores, dry cleaning/laundry establishments, medical clinics, newsstands, and tailors. Automobile gas stations or other establishments with gas pumps are not permitted. Convenience and service establishments shall not exceed 20 percent of the gross floor area of all buildings in the development (see LBCS Codes 2151-2154 and 2510-2530);
4.
Daycare centers for employer-sponsored child day or adult day care intended to serve employees of businesses in the development (see LBCS Code 6562);
5.
Depositories for the storage of office records, microfilm, computer tapes, or similar records (see LBCS Code 4240);
6.
Janitorial or exterminating service (see LBCS Code 2422);
7.
Mailing and shipping outlets intended to serve businesses and employees in the development (see LBCS Codes 2455, 4180 and 4190);
8.
Motor freight terminals (see LBCS Code 4140);
9.
Off-street parking garages and lots incidental to businesses in this development (see LBCS Code 2640);
10.
Offices, general, directly related to primary use;
11.
Recreational facilities for employees of businesses in the development (see LBCS Code 5370);
12.
Retail showrooms for products of the businesses in the development;
13.
Residential quarters for bona fide caretakers or watchmen and their families, when essential for the operation of the business;
14.
Restaurants and food service facilities (see LBCS Codes 2510-2530);
15.
Security service office or station;
16.
Telecommunications towers and facilities, when collocated on existing structures as an accessory use (see Article XI. Telecommunications towers and facilities); and
17.
Warehouses and storage (see LBCS Code 3600).
(c)
Uses That May Be Allowed by Conditional Use Permit.
1.
Cluster commercial development (see LBCS Code 9955);
2.
Hotels and motels intended to serve visitors to businesses in the development (see LBCS Code 1330);
3.
Radio and television broadcasting stations, studios, or offices;
4.
Trade expositions (see LBCS Code 5240);
5.
Trade or business school (see LBCS Code 6140); and
6.
Transmitting and receiving facilities and towers for cellular communications systems and similar communications systems in accordance with Article VII of this ordinance.
(a)
Area Regulations. The minimum lot area in flexible space developments shall be 20,000 square feet.
(b)
Site Development Requirements. The minimum setback and frontage requirements for flexible space developments shall comply with Exhibit VIII-6.
Exhibit VIII-6: Site Development Requirements for Flexible Space Developments
(c)
Utilities.
1.
Utilities shall be located underground.
2.
Rooftop mechanical equipment shall be located or screened so that it is not visible from the street.
3.
Transformers, utility meters, junction boxes, conduits, and connections shall be enclosed or screened from view.
4.
HVAC equipment mounted on the ground shall be screened so that it is not visible from the street.
5.
Dumpsters shall not be located in front or exterior side yards and shall be screened from view with opaque fences, walls, or evergreen plantings.
(d)
Traffic and Pedestrian Circulation.
1.
Separate entrances to and separate roadways within the flexible space development shall be provided for trucks and automobiles, unless, in the opinion of the City Engineer, the number and size of trucks expected to serve the uses in the development can be accommodated safely on the road network used by automobiles. Separate entrances shall be clearly marked.
2.
Each occupant of a flexible space development shall have access only onto interior roadways.
3.
The development shall be laid out so that individual buildings have access onto interior streets. Individual buildings or occupants shall not be provided with separate access points onto exterior roadways. Entrance(s) to the development shall serve all occupants and visitors.
4.
The interior road circulation network shall be laid out to discourage cut-through traffic from adjacent developments or residential areas.
5.
Pedestrian and/or bicycle routes, lanes, or paths shall be provided within the development to accommodate pedestrian and/or bicycle traffic between transit stops, parking areas, and buildings. Street design shall provide for the safety of pedestrians and bicyclists by clearly marking routes with striping and/or delineating them through the use of contrasting materials (e.g., bricks or pavers).
6.
Where a flexible space development abuts a street with transit service past the development, the development shall include a bus stop with shelter, unless the general manager of the Greater Lynchburg Transit Company, or its successor company, determines that a bus stop is not appropriate.
7.
The number of curb cuts onto interior roadways that serve as entrances to parking lots shall be limited to no more than two per parking lot.
(e)
Parking and Loading Requirements.
1.
Parking spaces shall be provided as required in section 35.2-62 et seq. of this Zoning Ordinance.
2.
Handicapped and visitor/client/customer parking may be provided near the front entrance(s) of buildings. All other parking (i.e., employees, service personnel) shall be located at the side or the rear of the buildings.
3.
Parking shall be shared among occupants to the maximum extent feasible.
4.
No paving or parking facilities shall be located with 25 feet of any residential district.
5.
Truck loading areas or docks shall be located on the side of the building away from public view or screened with landscaping, opaque fences, walls, or doors.
(f)
Signs. Signs shall comply with the applicable requirements for the underlying district(s).
(g)
Exterior lighting. Exterior lighting shall comply with the standards established in section 35.2-65.
(h)
Landscaping.
1.
Where a flexible space development abuts a limited access highway, the area of the development abutting the highway shall be landscaped according to the requirements of section 35.2-56.7(c) (Building Bulk Softening).
(i)
Building Types and Materials.
1.
Types of buildings located in a flexible space development include: flex-tech, multitenant, office, and showroom, with space for storage, distribution, and related uses. These buildings are to be laid out in a business park or campus-like setting.
2.
Vegetative buffering as provided in section 35.2-63.10 (Buffering) of this ordinance shall be required between buildings in the flex space development and adjoining public right-of-way, single-household districts and two-household districts except where:
a.
Individual buildings are designed so they can be converted to other uses and reused;
b.
The main entrances of buildings are oriented toward the interior roadways, except for those buildings that are sited between the main exterior street and an interior roadway. These buildings may be oriented toward the exterior street. For buildings oriented toward an exterior street, the rear of the building shall be designed to complement the facades of adjacent buildings. A second entrance to accommodate employees and visitors may be provided on the side of the building facing the interior street;
c.
No portion of a building constructed of unadorned cinderblock or corrugated and/or sheet metal is visible from any exterior or interior roadway or from any adjacent residential or commercial development; and
d.
Buildings are designed to use to the greatest extent feasible building materials that are compatible with a business park or campus type of development, such as rock, stone, brick, and/or wood.
3.
No outdoor storage or processing shall be permitted in a flexible space development.
(j)
Erosion and Sediment Control. All flexible space developments shall comply with the requirements given in Article 16.1, of the City Code.
(k)
Stormwater Management. All flexible space developments shall comply with the requirements given in Article 16.2 of the City Code.
Prior to securing a Building Permit for any construction in a flexible space development, approval of a concept and final site plan shall be obtained. The final site plan shall conform to the concept plan approved for the flexible space development, and may be submitted for the entire site or a portion of the site if the development is to be phased. Procedures for review shall be the same as those outlined in section 35.2-14.2 of this Zoning Ordinance.
A corporate campus (see LBCS Code 9957) is a master planned mixed-use development under unified ownership or control that permits offices and industrial space, with retail, restaurants, lodging and residences as secondary support uses by right in an I-1 or I-2 district or through the Conditional Use Permit process in the B-5 or IN-2 districts. Limited residential development may be located in mixed-use buildings or in transitional areas abutting residential districts as provided herein.
No building, structure or land shall be used for any purpose except the following:
(a)
Residential development within mixed-use buildings (see LBCS Code 1130).
(b)
Professional, medical, scientific and technical offices/services (see LBCS Code 2400).
(c)
Manufacturing, processing or product assembly where all operations are contained within a structure. Warehousing and distribution facilities are allowed as an accessory to these uses (see LBCS Code 3100, 3200, 3320—3370 and 3400).
(d)
Scientific laboratories and research enterprises/facilities (see LBCS Code 2416 and 6514).
(e)
Finance, insurance, management, administrative and support offices and services (see LBCS Codes 2210 and 2230—2250).
(f)
Support uses, including hotels, motels and restaurants, provided that no such use may be established unless included in a phasing plan and that the square footage of such uses shall not exceed ten (10) percent of the total floor area of the project at any time (see LBCS Codes 1330, 2116, 2151—2154 and 2510-2530).
(a)
Exhibit VIII-7 establishes the maximum potential density and the maximum floor area ratio. The achievable density or intensity permitted for any particular lot may be limited by site conditions or other standards set forth in this Zoning Ordinance.
(b)
Density is the number of dwelling units per gross acre of lot area on the lot on which the residential units are located. If open space is reserved adjacent to and accessible to residential units, the open space area may be used in the calculation of residential density.
(c)
Floor area ratio shall apply to all non-residential uses excluding lodging and residences. It is measured by dividing the total building floor area (excluding lodging units and dwelling units) by the lot area. Lodging unit intensity is measured by the number of lodging units per acre of the lot on which the units are located.
(d)
For buildings with dwelling units or lodging units located above non-residential floor area, maximum residential unit or lodging accommodation unit density and the floor area ratio shall be calculated using the total lot area. For example: a one acre lot would be allowed to have up to 43,560 square feet (one acre) of non-residential floor area plus 24 lodging units plus 12 dwelling units.
Exhibit VIII-7: Intensity/Density Standards
(a)
Height. The maximum building height shall be 100 feet.
(b)
Height Transitions Abutting Residential Districts. Where a lot abuts a residential zoning district or a mixed-use project, the maximum building height shall be no taller than the maximum height of the abutting district within 100 feet of the property line. The building height may be increased by one foot for each additional one foot for the applicable portion of the building separated from the property line.
(c)
Building Orientation and Entries. In corporate campus developments entrances shall be located on the front of the building. All buildings shall have clearly defined, visible entrances, featuring no fewer than three of the following:
1.
Canopies or porticos
2.
Awnings
3.
Overhangs
4.
Recesses/projections
5.
Arcades
6.
Raised corniced parapets over the door
7.
Peaked roof forms or arches
8.
Outdoor patios
9.
Display windows
(d)
Building Materials. Vegetative buffering as provided in section 35.2-63.10 (Buffering) of this ordinance shall be required between buildings in the corporate campus and adjoining public right-of-way, single-household districts and two-household districts except where:
1.
Predominant wall materials have the appearance of brick, stucco or textured masonry;
2.
Predominant wall materials shall cover at least 80 percent of walls, exclusive of windows and doors; and
3.
Materials with the appearance of concrete block, smooth concrete, corrugated or standing seam metal are prohibited.
(e)
Building Articulation. Front and street-facing side facades greater than 100 feet in length, measured horizontally, shall incorporate wall plane projections or recesses having a depth of at least three percent of the length of the facade and extending at least 20 percent of the length of the façade.
(f)
Rooflines.
1.
Rooflines shall be varied in height at least every 100 linear feet. Hips, gables or changes in parapet elevation shall be used to provide relief in height.
2.
Gable and hip roofs, and parapets with cornices shall be used to conceal flat roofs and rooftop mechanical equipment from public view.
3.
The parapet design shall be a minimum of three feet in height and shall incorporate a three-dimensional cornice treatment.
(g)
Building Setbacks. Building setbacks shall be established at the time of concept plan and conditional use permit approval by the City Council.
(h)
Landscaping. Landscaping shall comply with the provisions of section 35.2-63 et seq. except as otherwise modified through the conditional use permit approval process.
(i)
Common and Civic Areas. Common and civic areas shall be established as follows:
1.
At least ten percent of the total project area shall be devoted to common and civic areas, which may include courtyards, plazas and landscape/buffering areas. Retention ponds with a minimum 4:1 (run to rise) side slopes, with walkways and seating areas may be counted towards the required common and civic areas.
2.
Formal clusters of small deciduous trees shall be planted in civic areas to provide shade.
3.
At least one small deciduous tree shall be planted for every 200 square feet of civic area.
4.
At least one large deciduous tree shall be planted for every 800 square feet of civic area.
(j)
Outdoor Storage. Outdoor storage, where authorized by the conditional use permit shall be screened as provided in this section.
1.
The storage of bulk commodities shall be consolidated into a single area located in a rear or side yard and visually screened by buildings, walls, fences and/or landscaping. Outdoor storage is prohibited within 50 feet of any street or residential zoning district.
2.
Screening shall include an opaque wall or fence enclosure measuring at least six feet high and no more than eight feet high.
3.
A minimum ten feet wide planting strip shall be provided along the wall with the following plant materials:
a.
Minimum one evergreen tree for every 40 linear feet of wall; and
b.
Minimum one shrub for every three linear feet of wall.
(k)
Fences and Walls. No fence or wall shall be established in any front or street side yard except as established in this section. Where used, masonry walls shall have graffiti-resistant paint or finishes.
1.
Wrought-iron or metal picket fencing with a maximum height of three feet may be used to delineate outdoor patios/eating areas in any location on a lot.
2.
Masonry wall finishes shall match the principal building material; decorative wall cap and offsets or columns shall be provided every 50 linear feet.
(l)
Parking and Loading. Parking and loading shall be located as required in Section 35.2-62 except as modified by this section.
1.
Parking lots which accommodate more than 100 vehicles shall be divided into a series of connected smaller lots and separated by roads, open areas, structures or landscape strips measuring at least ten feet in width and having at least one large deciduous tree planted every 40 linear feet.
2.
Pedestrian walkways shall be provided between all buildings and between buildings and parking areas and all out parcels. Walkways within parking areas shall be located in a manner to provide safe efficient movement of pedestrians. Walkways shall be located in a manner so that no parking space is further than 120 feet from a walkway. Walkways and crosswalks shall be distinguishable from drive aisles.
3.
All pedestrian walkways shall be designed to provide safe efficient access for people with disabilities. Ramps shall be provided between all walkways and all crosswalks.
4.
Truck access and parking areas shall be separate from car parking areas and located in the rear yard.
5.
Parking spaces shall not be located between buildings and a front or side street.
6.
Parking structures shall be located behind the primary structure.
7.
Required off-street parking shall be provided within a five-minute (one-quarter mile) radius of the site that it serves.
(m)
Loading. Loading standards shall comply with section 35.2-62.5 and the following standards.
1.
Loading and service dock areas shall be located to the rear or sides of a building, away from the main building entrance, or related high visibility areas.
2.
Loading docks shall not be located between a building and a residential zoning district unless there is a minimum 100 feet setback between the loading dock and the residential district and the setback includes a landscape buffer and masonry wall.
3.
Loading spaces, their access drives and maneuvering areas shall be located and designed so that their use does not impede the normal use of parking spaces and access drives.
4.
Loading and service docks shall be screened by a masonry wall measuring not less than six feet in height and not more than eight feet in height or a landscape screen consisting of evergreen hedge that will measure at least five feet in height within one year of planting.
(n)
Bicycles.
1.
Internal bicycle circulation systems and easements shall be integrated into site design and connect to existing and future bicycle routes and trails.
2.
Bicycle lanes shall be provided along all collector or arterial streets internal to the development and shall be at least three feet in width. This provision may be waived where multi-purpose trails are provided.
3.
Bicycle racks shall be provided in accordance with section 35.2-62.6 of this Ordinance.