- EFFECTIVE DATE
Upon careful analysis, public review, planning commission recommendation, and city council adoption, this ordinance becomes effective immediately upon its passage. The effect of this amendment is to replace the prior official zoning map dated October 9, 2006, with the new official zoning map, dated August 12, 2013, attached hereto.
(Ord. No. 95-449, § 2, 6-12-95; Ord. No. 2003-564, § 2, 5-12-03; Ord. No. 2006-609, § 2, 10-9-06; Ord. No. O2013-713, § 2, 8-12-13)
Single-family residential dwellings detached shall conform to the requirements of district R-2. Single-family residential dwellings attached as follows:
*Note: If lot configuration is other than rectangular the width is defined at the building line. The lot area minimum of 2,500 sq. ft. must be maintained.
(Ord. No. O2013-712, Exh. B, 8-12-13)
Editor's note— See the editor's note following App. C.
Notes:
1.
Dimensions shown are minimums for the respective lot lines. Minimum lot area must be maintained (4,000 sq. ft.).
2.
Maximum lot coverage shall be 60%.
3.
There shall be no common zero lot line between adjacent lots.
(Ord. No. 83-300, 5-9-83; Ord. No. O2013-712, Exh. B, 8-12-13)
Editor's note— Ord. No. O2013-712, Exh. B, adopted Aug. 12, 2013, renumbered App. I as App. G.
Access: The principal means of ingress and egress to abutting property from a publicly dedicated right-of-way.
Accessory building or structure: A detached, subordinate building, the use of which is clearly incidental and related to that of the principal building, and which is located on the same lot as the principal building.
Accessory use: A use that is customarily incidental to the principal use, and so necessary that it cannot be prevented by the code. Accessory uses shall be located on the same premises as the principal use.
Acre: An acre shall contain forty three thousand five hundred sixty (43,560) square feet of land or of water.
Administrative official. The city manager and/or any staff member(s) of the city authorized by the city council to enforce, to interpret, or to administer the regulations, zoning ordinances, or orders.
Alley: A right-of-way which affords only a secondary means of access to property abutting thereon, and is not intended or used for general traffic circulation.
Alcoholic beverage sales, package: An establishment engaged in the sale of alcoholic beverages for off-premises consumption.
Alterations, building: Any change in the structure which will increase the number of dwelling units, the floor area, or the height of a structure.
Apartment: A room or suite of rooms which is rented, leased, let, or hired out, to be occupied as the home or residence of one individual, family, or household.
Apartment house: Any building, a portion thereof, which is designed, built rented, leased, let, or hired out to be occupied; or which is occupied as the home or residence of more than two (2) families living independently of each other, and doing their cooking in the said building, and shall include flats and apartments.
Architect: An individual, duly registered and licensed as an architect in the State of Texas.
Assisted living facility: An establishment that:
(1)
Furnishes, in one or more facilities, food and shelter to four (4) or more persons who are unrelated to the proprietor of the establishment;
(2)
Provides:
(a)
Personal care services; or
(b)
Administration of medication by a person licensed or otherwise authorized in this state to administer the medication; and
(3)
May provide assistance with or supervision of the administration of medication.
See Tex. Health and Safety Code § 247.002.
Atmospheric pollution: The discharging from stacks, open storage, chimneys, exhausts, vents, ducts, openings, open fires, or flames such air contaminants as visible emissions, sulphur dioxide, particulate matter, hydrocarbons, fumes, gases, or similar material.
Automotive repair shop: A building or structure used for painting, retouching and/or major repairs, of motor vehicles.
Automotive service station: A building, other structure, or a tract of land, used exclusively for retail sales of gasoline or other motor fuels; and for any accessory uses such as the sale of lubricants, accessories, supplies, or the repair of motor vehicles. No vehicles shall be stored, or mechanical repairs done outside the building. A public parking lot or public parking garage is not a permitted accessory use.
Bar: An establishment where alcoholic beverages are sold for on-premises consumption, but not a restaurant (as the principal use).
Bedroom: A sleeping room, the minimum of one hundred twenty (120) square feet.
Block: The smallest parcel of land entirely surrounded by streets, streams, railroad right-of-way, parks or other public space, or a combination thereof.
Board of adjustment: Has the power to hear and determine appeals from the refusal of building permits, appeals resulting from administrative decisions by city building inspector, and to permit exception to or variations from the zoning regulations in classes of cases or situations in accordance with the principles, conditions and procedures specified in the zoning ordinance.
Buffer: A parcel of land free of any structures, buildings, roadways, or other constructed items, and consisting of green cover.
Buildable area: The portion of a lot remaining after the required yards have been provided. Buildings may be placed in any part of the buildable area, but limitations on the per cent of the lot which may be covered by buildings may require open space within the buildable area.
Building: Any structure built for the support, the enclosure, the shelter, or the protection of chattels, persons, animals, or the like. The word "building" includes the word structure, and shall include any thing constructed or erected which requires permanent location on the ground, or is attached to anything having a permanent location on the ground; and shall include, but is not limited to, such structures as homes, hotels, motels, apartments, stores, service stations, radio towers, cooling towers, tanks, silos and billboards.
Building detached: A building surrounded by yards or other open space and on the same lot as a building.
Building, front line of: The line of that face of the building nearest to the front line of the lot.
Building line, rear: The line of that face of the building nearest to the rear line of the lot.
Building line, side: The line of that face of the building nearest to the side lines of the lot.
Building height: The vertical distance from grade to the highest finished roof surface in the case of flat roofs, or to a point at the average height or roofs having a pitch of more than one (1) foot in four and one-half (4½) feet. Height as applied to a story means the vertical distance from top to top of two (2) successive finished floor levels.
Building official: The city manager, or his authorized representative, charged with the administration and the enforcement of the zoning ordinance and building code of the City of Nassau Bay, Texas.
Building setback line: A line delineating the minimum allowable distance between the base of the building structure and the adjacent lot line.
Building site: A portion or parcel of land considered as a unit devoted to a certain use, or occupied by a building or group of buildings that are united by a common interest or use; with the customary accessories and open spaces.
Business or trade school: A vocational/technical school, language school, training center, beauty school, culinary school and comparable advanced or continuing education facilities. The phrase does not include university or college campuses, music schools, fitness centers, sports instruction, swimming instruction or martial arts instruction.
Carport: A roofed area open on one, two (2), three (3), or four (4) sides, unattached to the main building, for the storage of one or more vehicles.
Certificate of occupancy: An official, written approval by the building official setting forth that a building or structure legally complies with the Nassau Bay Zoning Ordinance and Building Code, and that the same may be used for purposes stated herein.
Child care facility, day care ("DCCCF"): A day care center, which is a state-licensed child-care facility that provides care at a location other than the residence of the director, owner or operator of the child-care facility for seven (7) or more children under fourteen (14) years of age for less than twenty-four (24) hours a day, but at least two (2) hours a day, three (3) or more days a week. See Tex. Human Resources Code § 42.002 and § 42.041.
City council: The legislative and governing body of the City of Nassau Bay, Texas.
Clinic: A facility providing medical, psychiatric or surgical service for sick or injured persons exclusively on an outpatient basis, including diagnostic services, treatment, training, administration and services to outpatients, employees or visitors. The term clinic includes immediate care facilities, where urgent care treatment is the dominant form of care provided at the facility, but does not include hospital, freestanding emergency medical care facility, or state-designated trauma center.
Commercial amusement, indoor: Uses that provide commercial amusement indoors (except adult uses), including, but not limited to:
(1)
Bowling alleys and pool rooms;
(2)
Movie theaters and live performance theaters;
(3)
Museums and aquariums;
(4)
Indoor skating rinks (ice or roller);
(5)
Indoor velodromes;
(6)
Shooting ranges (indoor), which means a building open to the general public wherein the shooting of firearms is allowed for the practice of marksmanship. This phrase does not include facilities maintained or operated by a police department or United States military branch that is not available to the general public.
(7)
Video arcades;
(8)
Local area network computer gaming centers; and
(9)
Internet cafes.
Commercial amusement, outdoor: Uses that provide commercial amusement outdoors, including, but not limited to:
(1)
Amphitheaters or other outdoor concert facilities;
(2)
Amusement parks or theme parks;
(3)
Fairgrounds;
(4)
Batting cages; and
(5)
Miniature golf establishments.
Commercial district, general: A land area designated for limited commercial facilities of a convenience nature, with a total area of not less than one-half (½) acre and not more than three (3) acres.
Commercial lodging: A place that offers overnight accommodations for short-term rental, including hotels and motels, and which may have dining rooms, restaurants, cafes or other accessory uses to serve guest needs.
(1)
Hotel means commercial lodging in which ingress to and egress from all guest rooms occurs internally within the hotel building, and that may also offer convention facilities or meeting rooms.
(2)
Motel means commercial lodging in which ingress to and egress from guest rooms usually occurs through individual entrances from outside the building, and which is of a design oriented to the short-term occupancy needs of patrons traveling by automobile.
Commercial retail: Commercial and retail uses that do not include regular outside storage or sales. The phrase "commercial retail" includes uses that are comparable to the following:
(1)
Furniture and home furnishings stores;
(2)
Electronics and appliance stores;
(3)
Paint and wallpaper stores;
(4)
Hardware stores;
(5)
Food and beverage stores;
(6)
Health and personal care stores;
(7)
Clothing and clothing accessory stores;
(8)
Sporting goods, hobby, book, music and stores;
(9)
Art sales/galleries;
(10)
General merchandise stores; and
(11)
Miscellaneous store retailers.
Common property line: A line dividing one lot from another.
Comprehensive land use plan: The official public document developed by the planning commission and city council of the City of Nassau Bay, Texas, as a policy guide to present and future land use decisions.
Condominium: A unit individually owned in a multi-unit structure, whether for residential or nonresidential use (e.g., office condominium), usually with common areas and/or facilities that the owners are mutually responsible for maintaining, typically through fees assessed on individual owners and administered through an owners association or designated property manager.
Contiguous: Lands are contiguous if they abut each other or are separated by street ways, easements, pipelines, power lines, conduits, and/or right-of-ways under ownership of the petitioner, of a governmental agency or subdivision, or of a public or private utility.
Country club: An area containing a club house available to a specific recorded membership. Such a club may include as adjunct facilities a dining room, private club, swimming pool, cabanas, tennis court, golf course and similar service and recreational facilities for the members; but shall not include living quarters. A specific use permit is required for service of alcoholic beverages.
Credit access business: A credit services organization that obtains for a consumer or assists a consumer in obtaining an extension of consumer credit in the form of a deferred presentation transaction or a motor vehicle title loan (Reference: Texas Finance Code § 393.601).
Cul-de-sac: A minor street with only one outlet terminating at one end with a circular turn around.
Deferred presentation transaction: A transaction in which:
(A)
A cash advance in whole or part is made in exchange for a personal check or authorization to debit a deposit account.
(B)
The amount of the check or authorized debit equals the amount of the advance plus a fee; and
(C)
The person making the advance agrees that the check will not be cashed or deposited or the authorized debt will not be made until a designated future date. (Reference: Texas Finance Code § 341.001)
Density: The relationship between numbers of dwelling units and land area.
Developer: Any individual, firm, co-partnership, corporation, or any other legal entity commencing proceedings under this ordinance.
District: Any certain area of Nassau Bay, Texas, to which these regulations apply, and within which the zoning regulations are uniform.
Dock, private: A structure built on or over the water, designed or used to provide anchorage for and access to one or more boats for private use. No cooking, sleeping, or business activity shall be permitted.
Dry cleaning/laundry pick-up station or laundry self-service shop: An establishment only for drop-off and pick-up of garments or other materials for dry cleaning or custom cleaning that is performed off premises; or a customer self-service laundry ("laundromat" or "wash-a-teria").
Dwelling unit: A single unit providing complete, independent living facilities for one or more persons including permanent provisions for living, sleeping, eating, cooking and sanitation.
Easement: Any strip of land created by a subdivision or granted by the owner for public or private utilities, drainage, sanitation, or other specific uses having limitations. The title to the land shall remain in the name of the proper owner, subject to the right of use designated in the reservation of the servitude.
Emission: The act of passing into the atmosphere an air contaminant or a gas stream which contains, or may contain, an air contaminant or the material.
Engineer, Registered: A professional engineer registered by the State of Texas.
Fence: A structural or natural physical barrier used to divide and/or enclose a defined area.
Final site development plan: A finished drawing showing all requirements of this ordinance, and in most cases, a further refinement of the site development plan submitted initially.
Floor, first finished: The first level of a structure, inhabited by or for the use of a private individual and/or the general public.
Firewall: A wall of noncombustible construction which subdivides a building or separates buildings to restrict the spread of fire, and which starts at the foundation and extends continuously through all stories to and above the roof, except where the roof is of fireproof or fire resistive construction, and where the wall is carried up tightly against the underside to the roof slab, pursuant to the Nassau Bay Building Code.
Floodplain: As defined by the Federal Emergency Management Agency and depicted on the flood insurance rate map and flood-boundary and floodway map dated November 18, 1982, and as they may subsequently be revised, all pursuant to enforcement of the National Flood Insurance Program 42 U.S.C. 4001-4128.
Floodway: The area of the floodplain reasonably required to carry and discharge floodwaters as defined by the Federal Emergency Management Agency, and as depicted on the flood insurance rate map and flood-boundary and floodway map dated November 18, 1982, and as they may subsequently be revised, all pursuant to enforcement of the National Flood Insurance Program 42 U.S.C. 4001-4128.
Frontage: All the property on one side of a street between two (2) intersecting streets; or if the street is a dead end, all of the property abutting on one side between an intersecting street and the dead end of the street.
Garage, private: An accessory building or a portion of a main building used for the storage of automobiles of the occupants of the main building.
Governmental services: The building of municipal government and related facilities such as, without limitation, libraries, recreational centers, public safety facilities, or city offices.
Grade: A reference plane representing the average of finished ground level adjoining the building at all exterior walls.
Gross land area: The total area, including all public and private areas within the legal boundaries of a parcel of land or project.
Ground-floor level: The ground-floor level of a building is the first livable area. Unfinished basements and storage areas for automobiles and other vehicles do not constitute a ground-floor level.
Heavy retail: Retail and/or service activities that have regular outside service or outside storage areas, exceptionally large floor areas, or partially enclosed structures, as listed below:
(1)
Permanent retail operations that are located outside of enclosed buildings, except nurseries;
(2)
Home centers;
(3)
Lumber and other building materials;
(4)
Lawn, garden equipment and related supplies stores;
(5)
Warehouse clubs and super stores; and
(6)
Equipment rental where the equipment is stored outside.
Heavy vehicle or watercraft sales or rental: A business engaged in the sales or rental of heavy trucks and/or boats.
Helistop: An area used for the take-off and landing of helicopters for the purpose of picking up and discharging of passengers or cargo. The use of the helistop is restricted to specific users or purposes (e.g., tenants of a corporate park; a hospital trauma center; etc.), and the term does not include "heliports," which are facilities for general helicopter aviation use that are not limited to a specific user or purpose.
Hospital: A "general hospital" or a "special hospital" as defined in Tex. Health and Safety Code § 241.003, and includes all subclassifications thereof, or a "freestanding emergency medical care facility" as defined in Tex. Health and Safety Code § 254.001.
(1)
General hospital means an establishment that:
(a)
Offers services, facilities and beds for use for more than twenty-four (24) hours for two (2) or more unrelated individuals requiring diagnosis, treatment or care for illness, injury, deformity, abnormality or pregnancy; and
(b)
Regularly maintains, at a minimum, clinical laboratory services, diagnostic X-ray services, treatment facilities including surgery or obstetrical care or both, and other definitive medical or surgical treatment of similar extent.
(2)
Special hospital means an establishment that:
(a)
Offers services, facilities and beds for use for more than twenty-four (24) hours for two (2) or more unrelated individuals who are regularly admitted, treated and discharged and who require services more intensive than room, board, personal services and general nursing care;
(b)
Has clinical laboratory facilities, diagnostic X-ray facilities, treatment facilities or other definitive medical treatment;
(c)
Has a medical staff in regular attendance; and
(d)
Maintains records of the clinical work performed for each patient.
(3)
Freestanding emergency medical care facility means a facility, structurally separate and distinct from a hospital, that receives an individual and provides emergency care.
Hotel: Any building containing principally sleeping rooms in which transient guests are lodged with or without meals, with no provisions made for cooking in any individual rooms or suite, and which may have dining rooms, restaurants, cafes, or accessory uses.
Kennel: Any premises where any combination of dogs, cats or other household pets, totaling four (4) or more animals, six (6) months of age or older, are kept, boarded or bred for the intention of profit or rescue.
Landscape architect: An individual duly registered and licensed as a landscape architect in the State of Texas.
Light auto service/fueling or charging station:
(1)
Gasoline service stations (including those that are associated with grocery stores and warehouse clubs) or fuel stations (e.g., hydrogen, compressed natural gas or liquefied petroleum gas) for alternative fuel vehicles;
(2)
Electric vehicle charging stations;
(3)
Gasoline, fuel station or charging station convenience marts (a gasoline service station, fuel station, and/or charging station with a convenience store);
(4)
Quick-service oil, tune-up, brake and muffler shops in which:
(a)
Repairs are made in fully enclosed bays;
(b)
Repairs are of a type that is typically completed in less than two (2) hours (e.g., oil changes, brake service, tire rotation and balancing, glass repair, battery replacement, tire replacement, fluid checks and replacement, muffler service, spark plug replacement, and comparable services); and
(c)
Vehicles are generally not stored on-site, and on the occasion when overnight storage is necessary, vehicles are stored indoors; or
(5)
Any combination of (1), (2), (3) or (4), above.
Live-work unit: A dwelling unit that provides space that is designed for a commercial or office use that is also allowed in the zoning district. Access between the dwelling unit and the commercial or office space is provided within the unit.
Lot: Either:
(1)
A lot of record, as part of a land subdivision recorded in the tax assessor's office, Nassau Bay, or
(2)
A tract of land under a unity of title document or a tract of land either subdivided or consisting of two (2) or more lots of record located in a single block, or
(3)
A tract of land, located within a single block, which at the time of filing for a building permit is designated by its owner or developer as a tract to be used entirely under a single ownership.
Lot area: The total horizontal area included within lot lines.
Lot corner: Either a lot bounded entirely by streets, or a lot which adjoins the point of intersection of two (2) or more streets.
Lot coverage: The portion of the area of a lot expressed as a percentage, occupied by all buildings or structures which are roofed or otherwise covered, and that extends more than three (3) feet above the ground level.
Lot depth: The horizontal length of a straight line drawn from the midpoint of the front property line of the lot to the midpoint of the rear property line of the lot.
Lot, frontage: The shortest property line adjacent to a public street; it is also the front property line.
Lot, interior: Any lot that is neither a corner lot, nor a through lot.
Lot, line: The boundary of a lot.
Lot, through: Any lot that has both the front and rear property line adjacent to a public street.
Lot, width: The horizontal distance between the side lot lines measured at right angles to the lot depth at a point midway between the front and rear property lines.
Medical lab: A facility offering diagnostic or pathological testing and analysis of blood, blood fluids, pathological specimens, DNA sampling and analysis, and any other diagnostic test generally recognized in the healthcare industry.
Medical office: Office space used by physicians, pediatricians, radiologists, dentists, chiropractors, physical therapists, acupuncturists and other health care professionals for the examination and/or treatment of patients on an outpatient basis, with no overnight stays by patients.
Mixed use: A mix of two (2) or more categories of uses (e.g., office and commercial retail) on the same parcel proposed for development. Mixed use includes:
(1)
Horizontally mixed use. Horizontally mixed use, or "multiple use," means that the uses are separated horizontally, and may be in separate buildings.
(2)
Vertically mixed use. Vertically mixed use means that the uses are separated vertically in a single building.
Motel: A building or group of buildings which contain sleeping accommodations for transient occupancy, and has individual entrances from outside the building to serve each sleeping unit. Motels may have one or more dining rooms, restaurants, or cafes, but no provision shall be made for cooking in the individual room or suite of rooms.
Multi-family dwelling: A dwelling unit located within a building that contains three (3) or more dwelling units that are accessed from interior elevators or hallways, or from individual exterior entrances, and are separated by interior walls and/or floors.
(1)
The term "multi-family dwelling" includes dwelling units that are located inside of mixed-use buildings.
(2)
The term "multi-family dwelling" does not include boarding houses, dormitories, fraternities, sororities, bed and breakfast establishments, single-family attached dwellings, or commercial lodging.
Nightclub: A commercial establishment that combines the consumption of alcoholic beverages (sold at the facility or brought in by patrons) on the premises with dancing and/or musical entertainment.
Nonconforming building or structure: A structure or building existing at the time of the passage of this ordinance which does not conform to the property development regulations including area, height, lot coverage, yard setbacks, lot location, or other like requirements of the district in which it is located.
Nonconforming use: A land use existing at the time of this ordinance passage which does not conform to the provisions, requirements, and regulations of the district in which it is located.
Nursery or greenhouse, retail: An enterprise that conducts the retail sale of plants, whether grown on the premises or not. The terms also include, as an accessory use, the sale of a limited selection of items (e.g., soil, planters, pruners, mulch, rock, etc., but not power equipment) that are directly related to the care and maintenance of landscapes.
Nursing home or convalescent home: An establishment that:
(1)
Furnishes, in one or more facilities, food and shelter to four (4) or more persons who are unrelated to the proprietor of the establishment; and
(2)
Provides minor treatment under the direction and supervision of a physician licensed by the Texas Medical Board, or other services that meet some need beyond the basic provision of food, shelter and laundry.
Office: Uses in which professional, business, information processing or financial services are provided. The term includes such uses as:
(1)
Accounting, auditing and bookkeeping;
(2)
Administration of businesses (e.g., corporate headquarters);
(3)
Advertising and graphic design;
(4)
Architectural, engineering, urban planning and surveying services;
(5)
Attorneys and court reporters;
(6)
Banks, mortgage companies and financial services;
(7)
Call centers;
(8)
Computer programming;
(9)
Counseling services;
(10)
Data processing and word processing services;
(11)
Detective agencies;
(12)
Government offices;
(13)
Insurance;
(14)
Interior design;
(15)
Real estate sales and leasing;
(16)
Research and development that does not include on-site manufacturing;
(17)
Retail catalog, internet and telephone order processing, but not warehousing; and
(18)
Virtual office services.
Open space: An exterior open area clear from the ground upward, devoid of residential and commercial buildings, accessory structures and impervious areas, except for those structures used exclusively for recreational purposes or as walkways or sidewalks.
Park or playground (public ownership): An open recreation facility, field, golf course, or park owned and operated by a public agency or school district and available to the general public.
Parking area: The total area devoted to the parking and maneuvering of automobiles (refer to Appendix H).
Parking facility: Parking lots or structures that are not provided as required parking for a particular use, and where a fee for use is typically charged. The phrase "parking facility" also includes facilities that provide both parking for a particular use and regular fee parking for people not connected to the use. The phrase includes small structures intended to shield attendants from the weather.
Parking lot: An open area which is used for the parking of automobiles.
Parking lot or structure (commercial): An area or structure devoted to the parking or storage of automobiles which may include in the case of a parking structure only, a facility for servicing automobiles provided such facility is primarily an internal function for the exclusive use of automobiles occupying the structure and creates no special problems of ingress and egress; the sale of petroleum products is not allowed.
Parking space: A surfaced area enclosed or unenclosed, sufficient in size to store one automobile, together with a driveway connecting the parking space to a street or alley, permitting ingress and egress of an automobile (refer to Appendix H).
Particulate matter: Any material, except uncombined water, which exists in a finely divided form as a liquid or solid at standard conditions when released into the atmosphere.
Party wall: A wall which divides two (2) adjoining properties, and on which each of the owners of the adjoining properties has rights of enjoyment.
Passenger motor vehicle sales or rental: A business that is engaged in the sale or rental of passenger vehicles, light trucks and/or motorcycles.
Patio, open porch, court: An open, unoccupied space which may be partially enclosed by wall, fence, or building and not considered part of the residential living structure.
Pawn shop: An establishment that is engaged in the business of:
(1)
Lending money on the security of pledged goods; or
(2)
Purchasing goods on condition that the goods may be redeemed or repurchased by the seller for a fixed price within a fixed period. See Tex. Finance Code § 371.003.
Personal fitness or music instruction: Uses that involve instruction or facilities for physical fitness, dance or music instruction. Such uses include membership gymnasiums (with or without personal training instruction), and instruction in music, yoga, dance, boxing, aerobic exercise or martial arts. The phrase "personal fitness or music instruction" does not include the phrase "personal services," nor the phrase "professional services, instruction or counseling."
Personal services: A use that provides non-medical services that generally (but not necessarily) are used on a recurring basis, and generally require one-to-one interaction between the proprietor or employee and the customer in order to provide the service. Examples of personal services include beauty and barber shops, body piercing studios, nail salons, tanning facilities, tattoo parlors, and tailoring. The phrase does not include the phrase "personal fitness or music instruction," nor the phrase "professional services, instruction or counseling."
(1)
Body piercing studio means a facility in which the creation of an opening in an individual's body, other than in an individual's earlobe, to insert jewelry or another decoration ("body piercing") is performed. See Tex. Health and Safety Code § 146.001.
(2)
Tanning facility means a business that provides for the use of any equipment, including a sunlamp, tanning booth and tanning bed, that emits electromagnetic radiation with wavelengths in the air between two hundred (200) and four hundred (400) nanometers, and is used for the tanning of human skin. See Tex. Health and Safety Code § 145.002.
(3)
Tattoo studio means an establishment or facility in which the practice of producing an indelible mark or figure on the human body by scarring or inserting a pigment under the skin using needles, scalpels or other related equipment is performed. The phrase "tattoo studio" also includes an establishment in which the application of permanent cosmetics is performed. See Tex. Health and Safety Code § 146.001.
Place of private assembly: A structure, or part of a structure, that can be temporarily rented for private gatherings (e.g., receptions, private parties, reunions, meetings, etc.).
Place of public assembly: An indoor place where people assemble for civic or cultural purposes. This use includes places of worship, meeting facilities and conference centers.
Planning commission: An advisory body to the city council to effect the orderly and desired growth, development and beautification of the city planning and zoning functions.
Plat: A map depicting the divisions or subdivisions of land into lots, blocks, parcels, tracts, or other portions thereof, whatever the same may be designated, prepared in accordance with the provisions of this ordinance, and those of any applicable law and/or any local ordinance.
Plat, final: A plat approved and certified by the city council and planning and zoning commission as a legal document to be used in the planning and construction of a building and/or buildings.
Plat, preliminary: A copy of the plan in sufficient form to readily compare the plat with the master plan and construction plans.
Post office: A branch of the United States Postal Service.
Private club: A building in which members of a community or association may gather for social, educational or cultural activities.
Professional services, instruction or counseling: Services that principally involve communication between the proprietor or employee and the client, and which may involve services to more than one client at a time by a single proprietor or employee, including marriage counseling, tutoring and financial planning. The phrase does not include the phrase "personal fitness or music instruction," nor the phrase "personal services."
Property line, rear: A property line opposite and most distant from the front property line. For a triangular lot, the rear property line shall mean a line ten (10) feet in length within the lot parallel to the front property line, or parallel to the chord of a curved front property line, and at the maximum distance from it.
Property owners association: A nonprofit organization, recognized as such under the laws of Texas, operated under recorded land agreements through which each owner of portion of a subdivision, be it a lot, home property or any other interest, is automatically subject to a charge for a prorated share of expenses either directly or indirectly for maintaining common properties, recreational areas, common areas, or other similar areas.
Public and private utility services: A room or portion or a building, or an area adjacent to a building, enclosed from public access and view which use is incidental to, and is required in, direct support of the primary building use.
Public park: Any publicly owned park, playground, beach parkway, or other recreational area and open space.
Radio, television or microwave towers: Structures supporting antennae for transmitting or receiving any portion of the radio spectrum, and including noncommercial antennae installations for home reception of radio or television.
Recreation facility or club: An area used for recreation and social activities either public or private.
Restaurant: An establishment that sells prepared food and beverages to customers for consumption on-site or off-site. The term "restaurant" includes:
(1)
Restaurant, drive-in or drive-through means a restaurant located either within a retail center, or situated on its own freestanding pad, which:
(a)
Contains a drive-in or drive-through facility;
(b)
Primarily serves food that is prepared and packaged within five (5) minutes; and
(c)
Customarily serves food in disposable containers.
(2)
Restaurant, no drive-in or drive-through means an establishment that serves prepared meals to customers for consumption on-site or off-site, but does not include drive-in or drive-through facilities (however, the use may include designated parking spaces for "curbside pickup" of food ordered in advance if the curbside pickup is a clearly subordinate function to the restaurant's operations), and includes:
(a)
Full-service restaurants;
(b)
Limited-service eating facilities; and
(c)
Special foodservices.
Rezoning: The legal process through by which changes are made to the boundary or boundaries of a zoning district(s) or where a new boundary or boundaries are established for zoning districts.
Right-of-way: A strip of land dedicated or deeded to the perpetual use of the public.
School, public or denominational: A school under the sponsorship of a public or religious agency, having a curriculum generally equivalent to public elementary and secondary schools; but not including trade or commercial schools or nursery schools, kindergartens or day care centers.
Setback: A line running a certain distance back from and parallel to the base building line or front property line, whichever provides the greater separation, wherein no building, structure, or portion thereof shall be permitted.
Single-family dwelling (attached): A dwelling unit which is joined to another dwelling at one or more sides by a party wall or abutting separate wall, and which is designed for occupancy by one family, and is located on a platted separate lot, delineated by front, side and rear lot lines, and is served by separate utility connections and meters as a single-family dwelling.
Single-family dwelling (detached): A dwelling unit, excluding mobile homes, designed and constructed for occupancy, and occupied by not more than one family, and located on a lot or separate building tract and having no physical connection to a building located on any other lot or tract.
Site development plan: A graphic and informative representation of a specific design solution for a development phase or the entirety, meeting the requirements of this ordinance.
Specific use permit: A permit required for a use that would not generally be appropriate but which is possible by permit of the City of Nassau Bay, Texas. Such uses shall include the service of alcoholic beverages, dancing, and other uses as determined by the city council.
Story: That part of a building between the surface of a floor and the floor immediately above (refer to ground floor level).
Street: A strip of land privately or publicly owned which affords principal means of access to abutting property.
Structure: That which is built or constructed.
Swimming pool: Any confined body of water, located either above or below the existing finished grade of the site, exceeding one hundred (100) square feet in surface area and two (2) feet in depth.
Swimming pool, residential: A swimming pool and attendant equipment maintained by an individual for the sole use of his household guest, and located in a lot as an accessory use.
Telephone exchange: Switching and relay and transmitting equipment, except for public business facilities, storage or repair facilities, radio or television transmission.
Temporary construction office: A trailer, structure, or shelter for temporary office use authorized by permit, used in connection with a development or building project, for temporary on-site administrative and supervisory functions, and shall be removed upon completion of the project.
Town house: A single-family dwelling attached to one or more other single-family dwellings by not more than two (2) party walls.
Town house, cluster: Two (2) or more town houses connected by party walls in a single building.
Utility line local: The facilities provided by a municipality or a franchised or other utility company for the distribution or collection within Nassau Bay of gas, water, sewage, surface drainage water, electric power, telephone service, or fluid used for thermal control of buildings.
Variance: A relaxation of the terms of the zoning ordinance where such variance will not be contrary to the public interest, or comprehensive land use and where, owing to conditions peculiar to the property, and not owing to actions of the applicant, a literal enforcement of the ordinance would result in exceptional hardship.
Vehicle service: Uses that perform service on automobiles, boats, motorcycles and/or recreational vehicles. The phrase does not include auto body (e.g., collision repair), paint or upholstery services.
Vehicle wash: Any area or business using self-service, in-bay automatic, or conveyor equipment for cleaning and washing motor vehicles, whether as a part of another business operation (e.g., as an accessory use to light automobile service/fueling station or vehicle sales, rental and service), or as a stand-alone operation, of any type, on a commercial basis. The phrase "vehicle wash" includes fleet and municipal in-bay automatic and conveyor vehicle wash facilities.
Vending kiosk/ATM: A machine that is located in a fixed position outdoors (either attached to a building or in a freestanding structure), which does not require employees or attendants to conduct transactions, and which is used for:
(1)
Automated banking or other financial transactions (e.g., "ATM," change machines, etc.); or
(2)
Vending or dispensing products (e.g., water, ice, DVD purchases or rentals, postal supplies, soft drinks, newspapers, snacks, ice cream, coffee or other foods or consumer items).
Veterinarian, small animal: Veterinary clinics and hospitals that provide care for small domestic animals. The phrase "veterinarian, small animal" does not include large animal and livestock veterinarians.
Yard: A required open space, clear from ground upward of any structure except for fences, walls and hedges.
Yard, front: A yard extending across the front of a lot.
Yard, interior: A yard between any structure and the side line of the lot.
Yard, rear: A yard extending across the rear of a lot.
(Ord. No. 83-301, 5-9-83; Ord. No. 86-341, § A(8), 9-8-86; Ord. No. 2000-529, 12-11-2000; Ord. No. 2009-655, § II, 11-9-09; Ord. No. O2013-712, Exh. B, 8-12-13)
Aluminum composite panel (ACP). A smooth material comprised of composite metal for external cladding of buildings on vertical, sloped or horizontal surfaces. ACPs may be applied over masonry, structural steel, stud backup, or within curtain wall designs. ACPs may be produced in numerous colors or in patterns that imitate other materials such as marble or wood.
Arcade. An arched or covered passageway attached to a building façade.
Articulation. Architectural design method in which particular elements and parts of a building are made more distinct through variation in flat surfaces and straight lines (e.g., building facades, rooflines, etc.).
Blockface. The properties abutting on one side of a street between the two (2) nearest intersecting streets or other physical features, such as a watercourse or unsubdivided land, that defines the end of the block.
Building integrated photovoltaics (BIPv). Use of photovoltaic materials to replace conventional building materials in parts of a building envelope such as the facades, roof or skylights. Photovoltaic materials generate electrical power by converting solar radiation into direct current electricity. A BIPv system serves the dual function of building skin and power generator, and is often used to add architectural interest to a building.
Cornice. A horizontal molded projection that crowns or completes the top of a building or wall.
Diameter at Breast Height (DBH): A standard method of expressing (in inches) the diameter of the trunk of a standing tree, including bark, measured 4.5 feet above ground level on the uphill side of the tree.
Dormer. An extension built out from a sloping roof to accommodate a vertical window.
Exterior Insulation and Finish System (EIFS). A method of building cladding that provides an insulating, protective and decorative finish system for exterior walls that can be installed on any type of construction, and in a variety of shapes, colors and textures to replicate other architectural styles or finish materials.
Gable. A triangular area of an exterior wall under the inverted "v" formed at the end of a pitched roof.
Green roof system. The complete or partial covering of a building roof with vegetation and a growing medium, planted over a waterproofing membrane, which may also include additional layers such as a root barrier and drainage and irrigations systems. Such rooftop systems are typically used to absorb and/or retain rainwater, provide insulation, create urban habitat for wildlife, and help to lower urban air temperatures.
Parking area: Those areas accessible to the public by vehicular and non-vehicular means and which are designated for temporary parking of motor vehicles and/or bicycles (where required or so designated), usually in places referred to as parking lots.
Parking space: A surfaced area enclosed or unenclosed, sufficient in size to store one automobile (or one or more bicycles in the case of spaces dedicated to bicycle parking), together with a driveway connecting the parking space to a street or alley, permitting ingress and egress of vehicular and non-vehicular traffic.
Score line. A notch or incision on a building façade, often in a different color and/or texture, to add variety and visual interest to exterior walls.
Standing seam metal. A side-by-side formation of panels, typically made of steel, aluminum, copper or other architectural metal, in which the panels are joined together at the sides and secured in place by concealed fasteners, with the overlapping panel lock forming a seam as a connecting point between the panels. This enables the connected panels to be used for building and roofing applications.
(Ord. No. O2013-712, Exh. B, 8-12-13)
(A)
Generally. The purpose of this appendix is to itemize the information required for particular types of development applications addressed by Appendix A, Zoning.
(Ord. No. O2013-712, Exh. B, 8-12-13)
Each application for rezoning involving changes in district boundaries shall include the following:
(A)
Privately-initiated rezonings. For rezoning requests initiated by the owner of the property or their authorized agent:
(1)
A completed application in accordance with Section 5-200, Applications, including contact information for the property owner or documentation of any agent authorized by the property owner to act on his/her behalf.
(2)
Address of the subject property, if applicable.
(3)
An accurate metes and bounds legal description of the property, along with an exhibit of the property (in digital form, if available). If only a portion of a lot or parcel is to be reclassified, the legal description, by metes and bounds, shall cover only that portion of the property to be reclassified. In either case, the property description shall be accompanied by a computation of the total acreage of the property to be reclassified to the nearest tenth of an acre.
(4)
If the property is part of a subdivision, the location of the subject property as referenced on a filed subdivision plat (block and lot numbers) or the latest available tax roll (parcel identification numbers).
(5)
If available, a map indicating the location, dimensions and uses of any existing structures, along with other property features or improvements (e.g., right-of-way lines, easements, curb cuts, fences, etc.).
(6)
A description of any applicable deed restrictions that could affect the allowable uses of the subject property.
(7)
A statement of the reasons for seeking the rezoning, and confirmation of the existing and proposed new zoning classifications, including whether multiple new classifications are proposed for separate parcels or different portions of one or more properties.
(B)
City-initiated rezonings. For rezoning requests initiated by a city decision-making body or the administrative official, in lieu of an application or fee payment as for privately-initiated rezonings:
(1)
The information required by items (2), (3) and (7) in subsection (A), above.
(2)
Information necessary for the mailed and published notices required by Section 5-600.
(3)
Multiple and non-contiguous properties. When a city-initiated rezoning involves multiple properties, some of which are not adjacent and contiguous, the city may provide a unified description and notice of the proposed action where all affected properties have the same zoning classifications, existing and proposed, and the rationale and circumstances are generally the same. Otherwise, the city shall provide a distinct description and notice where geographically separated properties would be changed to different types of zoning classifications and/or where the reasons for or the context or potential impacts of the rezoning are likely to differ by location.
(4)
City authority. The consent of the property owner(s) is not required for a city-initiated rezoning involving privately owned property.
(Ord. No. O2013-712, Exh. B, 8-12-13)
Each application for a specific use permit to allow a use subject to special regulations in the zoning districts shall include the following:
(A)
A site development plan showing the proposed layout of the subject site and the relationship of the specific use permit therein.
(B)
The submission of city-provided forms stating compliance with all requirements of the appropriate district or special regulations contained in the zoning ordinance.
(C)
A specific address and location within that address.
(Ord. No. O2013-712, Exh. B, 8-12-13)
Each application for a variance from the terms of this ordinance shall include the following:
(A)
The submission of the number of copies of the site development plan specified by the administrative official on the application form.
(B)
All information required by Section B-200.
(C)
The submission of city-provided forms stating all information required by the board of adjustment.
(Ord. No. O2013-712, Exh. B, 8-12-13)
Each application for site plan review and approval, and associated building design review where applicable, shall include the following:
(A)
Preliminary plans.
(1)
An easily readable sketch of the undeveloped land showing significant existing physical features, including trees, vegetation, watercourses, rock outcrops, etc. In the case of a marine zone application, the sketch of the undeveloped marine area shall include channels, sandbars, vegetation, etc.
(2)
A sketch depicting site size (acreage), building size (square footage) and location, and parking lot(s) configuration including auto capacity (parking ratio), which sketch will also include driveway size and location, building and parking setbacks, landscaping area, utility layout, service area and notation of the percentage of the site devoted to open space. In the case of a marine zone application, the sketch shall depict site size (area), structure size (square footage), structure height (feet), setbacks, relation of proposed structure to the abutting land area, and utility layout.
(3)
In cases where design review is required (including marine zone applications), preliminary plans for exterior design elevations, materials and colors, along with a rendering of the planned exterior building or structure appearance. These plans shall be presented in the format typically produced by a registered, professional architect.
(4)
In the case of a marine zone application, documentation indicating approval of the proposed construction from other appropriate government agencies including the Texas General Land Office and the U.S. Army Corps of Engineers, who have jurisdiction over construction in marine zones.
(B)
Final plans.
(1)
A site development plan, drawn to scale, showing uses and structures proposed for a parcel of land (or a water area in the case of a marine zone application) as required by the regulations involved, including such details as the following:
(a)
The existing and proposed conditions of the lot and major landscape features, both natural and manmade, including, but not limited to, topography, floodways, vegetation, drainageways, floodplains, watercourses and bodies and reserved open space. In the case of a marine zone application, the plan shall depict the existing and proposed conditions of the water area and major features, both natural and manmade.
(b)
The location of all existing and proposed buildings, lot lines, streets, drives, parking spaces, walkways, means of ingress and egress, drainage facilities, utility services, landscaping plan, structure and signs, lighting, screening devices, architecture, choice of building material and colors. In the case of a marine zone application, the plan shall depict the location of all existing and proposed structures, lot lines, utility services, signs, lighting, architecture, choice of building material and colors.
(c)
Any other information that may be reasonably required in order to make an informed determination pursuant to an ordinance requiring review and approval of site plans by the planning commission.
(Ord. No. O2013-712, Exh. B, 8-12-13)
Each application for site plan review and approval requires an associated landscaping plan, which shall include the following:
(A)
A plan view drawing prepared at a standard scale that ensures clarity of the proposal, which shall indicate:
(1)
Existing and proposed topography of the site, shown at one-foot contours;
(2)
Location and base flood elevation of floodplains;
(3)
Dimensions, surface area and type of planting area (e.g., landscape surface area, parking lot landscaping, etc.) for each planting area;
(4)
The location and quantity of trees and shrubs to be installed, which shall be drawn at three-fourths (¾) of mature size and annotated with genus, species, common name, drought tolerance, and size at planting;
(5)
The location, quality, size (measured as diameter at breast height, or DBH), and protected root zone of trees that are to be preserved on the site;
(6)
The location and extent of areas of groundcover; the groundcovers, turf, seed or inorganic materials to be installed or planted; and the type of underlayment proposed to be used (if any);
(7)
Dimensions of all landscape elements and any related features, including fences, walls, border edge treatments, berms, water features, bicycle racks, trash enclosures, street furniture, public art, and recreational facilities, as applicable (the administrative official may require details or specifications for landscape features or structures to be attached to the landscaping plan to facilitate subsequent inspection);
(8)
Dimensions and surfacing of all easements, pedestrian walkways and pedestrian-oriented areas (existing and proposed);
(9)
Location and dimensions of maintenance easements for drainage facilities (if any);
(10)
Location of existing and proposed overhead and underground utilities (if any);
(11)
Dimensions and slopes of stormwater detention areas (if any);
(12)
Special landscape features for stormwater detention and treatment, such as bioswales and rain gardens; and
(13)
Dimensions and locations of sight distance triangles.
(B)
Schematic drawings of typical plant installation methods, indicating whether and how the soil will be augmented to support the growth and health of the plant material.
(C)
Indication of the source(s) of irrigation water and the types of irrigation to be used (such information may be provided on a separate sheet).
(D)
A schematic irrigation plan that shows:
(1)
The proposed lap/backflow preventer and irrigation controller location;
(2)
The location of the manual gate valve that will control the entire irrigation system;
(3)
The type of irrigation proposed for each landscape area or irrigation zone (turf, shrub beds, etc.);
(4)
The proposed setback distance of all proposed irrigation heads from back of curb or edge of pavement; and
(5)
All proposed sleeve locations.
(E)
Tabular data on the landscaping plan that shows the area of each required planting area, the number of each type of plant required in each area, each plant type used, the number of plants of each type to be installed, and the genus and species of plants used to meet the requirements of this article.
(F)
The administrative official may require information regarding specific design techniques that will be used to prevent water infiltration or damage at the street section.
(Ord. No. O2013-712, Exh. B, 8-12-13)
Each application for Planned Unit Development (PUD) review and approval shall include the same information as an application for rezoning under Section B-200, above, and shall also include the following:
(A)
PUD master plan. The PUD master plan shall include both plans and written documents for the entire PUD area and shall specifically include the following as a minimum:
(1)
The location and gross acreage of each density area including the dwelling intensity of any residential areas or the lot sizes and locations of any other uses within the PUD.
(2)
The location of areas proposed to be conveyed, dedicated, or reserved for public open space, playgrounds, school sites, or public buildings.
(3)
The location of floodplains and all public streets.
(4)
The conceptual location and acreage of private streets and common open space.
(5)
The location and development criteria of all landscaped buffer areas within one hundred (100) feet inside the perimeter of the parcel.
(6)
The development controls which will be applied to assure compatibility of the proposed development with adjacent existing development and zoning districts.
(7)
The assurance of maintenance and continued protection of the PUD, including any of the common open space. This includes, but is not necessarily limited to, restrictive covenants, homeowners' association agreements, maintenance agreements, deeds, and agreements establishing easements and rights-of-way.
(8)
The public dedications and physical improvements which will be undertaken to assure compatibility with adjacent land uses and the assurance that the development will not require excessive expenditures by the city for road or utility improvements.
(9)
A plan for the location of all public utilities.
(10)
A drainage plan.
(11)
A plan showing the land uses and density of adjacent development within two hundred (200) feet of the boundary of the PUD.
(12)
A landscape plan showing the type, location, and size of existing and proposed plant materials.
(13)
Elevations, dimensions, and locations of proposed signage.
(14)
Elevations, perspectives, and material and color information of proposed buildings.
(15)
Impact studies including the effects on the existing city infrastructure (e.g., water, sanitary sewer, storm sewers) and vehicular traffic.
(B)
Scale and format. All plans shall be submitted at a suitable scale to adequately illustrate all required information and shall not result in a sheet size exceeding twenty-four (24) inches by thirty-six (36) inches. The plans should also be provided in an electronic format approved by the administrative official.
(C)
Detailed site plan. Detailed site plans, showing details in excess of those required on the PUD master plan, shall be required as part of a PUD approval. Such site plans shall meet the following criteria:
(1)
They shall be in compliance with the approved PUD master plan.
(2)
They shall contain all the detailed information required for site plan approval pursuant to Section 16.6-200 in Appendix A, Zoning, and Section B-500 in this appendix.
(D)
Conceptual development plan. If the city council, at its discretion, authorizes the substitution of a conceptual development plan for multistaged developments in place of a PUD master plan, the conceptual development plan shall:
(1)
Satisfy the submittal requirements in subsections (A) through (C), above, for the initial phase(s) of the development.
(2)
Clearly define the uses, total permitted development, and primary transportation system.
(3)
Clearly define the methods by which land uses proposed along the boundary of the proposed PUD will interface with existing adjacent development.
(4)
Set forth the manner in which the details outlined in this section shall be provided to the city for approval as part of an ongoing approval process.
(5)
Set forth all necessary terms of reference by which ongoing approvals will be evaluated.
(E)
Subdivision application. In the case of a PUD application which involves platting and requires subdivision approval, the applicant must also meet the submittal requirements of Appendix B, Subdivisions, in the City Code of Ordinances.
(Ord. No. O2013-712, Exh. B, 8-12-13)
Each application for an administrative appeal shall include the following:
(A)
Citation of the specific provisions of this ordinance for which interpretation is sought.
(B)
A description of a hypothetical situation or scenario to which the application of these regulations is in question.
(C)
A statement of the nature of the interpretation sought.
(Ord. No. O2013-712, Exh. B, 8-12-13)
- EFFECTIVE DATE
Upon careful analysis, public review, planning commission recommendation, and city council adoption, this ordinance becomes effective immediately upon its passage. The effect of this amendment is to replace the prior official zoning map dated October 9, 2006, with the new official zoning map, dated August 12, 2013, attached hereto.
(Ord. No. 95-449, § 2, 6-12-95; Ord. No. 2003-564, § 2, 5-12-03; Ord. No. 2006-609, § 2, 10-9-06; Ord. No. O2013-713, § 2, 8-12-13)
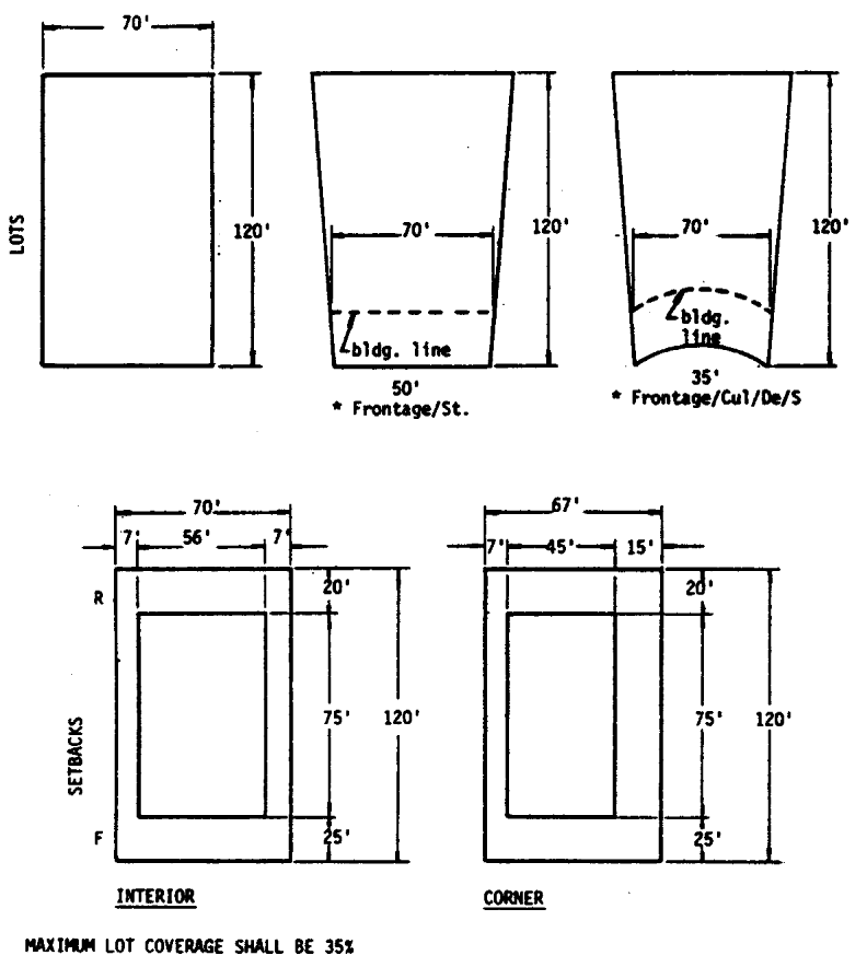
Single-family residential dwellings detached shall conform to the requirements of district R-2. Single-family residential dwellings attached as follows:
*Note: If lot configuration is other than rectangular the width is defined at the building line. The lot area minimum of 2,500 sq. ft. must be maintained.
(Ord. No. O2013-712, Exh. B, 8-12-13)
Editor's note— See the editor's note following App. C.
Notes:
1.
Dimensions shown are minimums for the respective lot lines. Minimum lot area must be maintained (4,000 sq. ft.).
2.
Maximum lot coverage shall be 60%.
3.
There shall be no common zero lot line between adjacent lots.
(Ord. No. 83-300, 5-9-83; Ord. No. O2013-712, Exh. B, 8-12-13)
Editor's note— Ord. No. O2013-712, Exh. B, adopted Aug. 12, 2013, renumbered App. I as App. G.
Access: The principal means of ingress and egress to abutting property from a publicly dedicated right-of-way.
Accessory building or structure: A detached, subordinate building, the use of which is clearly incidental and related to that of the principal building, and which is located on the same lot as the principal building.
Accessory use: A use that is customarily incidental to the principal use, and so necessary that it cannot be prevented by the code. Accessory uses shall be located on the same premises as the principal use.
Acre: An acre shall contain forty three thousand five hundred sixty (43,560) square feet of land or of water.
Administrative official. The city manager and/or any staff member(s) of the city authorized by the city council to enforce, to interpret, or to administer the regulations, zoning ordinances, or orders.
Alley: A right-of-way which affords only a secondary means of access to property abutting thereon, and is not intended or used for general traffic circulation.
Alcoholic beverage sales, package: An establishment engaged in the sale of alcoholic beverages for off-premises consumption.
Alterations, building: Any change in the structure which will increase the number of dwelling units, the floor area, or the height of a structure.
Apartment: A room or suite of rooms which is rented, leased, let, or hired out, to be occupied as the home or residence of one individual, family, or household.
Apartment house: Any building, a portion thereof, which is designed, built rented, leased, let, or hired out to be occupied; or which is occupied as the home or residence of more than two (2) families living independently of each other, and doing their cooking in the said building, and shall include flats and apartments.
Architect: An individual, duly registered and licensed as an architect in the State of Texas.
Assisted living facility: An establishment that:
(1)
Furnishes, in one or more facilities, food and shelter to four (4) or more persons who are unrelated to the proprietor of the establishment;
(2)
Provides:
(a)
Personal care services; or
(b)
Administration of medication by a person licensed or otherwise authorized in this state to administer the medication; and
(3)
May provide assistance with or supervision of the administration of medication.
See Tex. Health and Safety Code § 247.002.
Atmospheric pollution: The discharging from stacks, open storage, chimneys, exhausts, vents, ducts, openings, open fires, or flames such air contaminants as visible emissions, sulphur dioxide, particulate matter, hydrocarbons, fumes, gases, or similar material.
Automotive repair shop: A building or structure used for painting, retouching and/or major repairs, of motor vehicles.
Automotive service station: A building, other structure, or a tract of land, used exclusively for retail sales of gasoline or other motor fuels; and for any accessory uses such as the sale of lubricants, accessories, supplies, or the repair of motor vehicles. No vehicles shall be stored, or mechanical repairs done outside the building. A public parking lot or public parking garage is not a permitted accessory use.
Bar: An establishment where alcoholic beverages are sold for on-premises consumption, but not a restaurant (as the principal use).
Bedroom: A sleeping room, the minimum of one hundred twenty (120) square feet.
Block: The smallest parcel of land entirely surrounded by streets, streams, railroad right-of-way, parks or other public space, or a combination thereof.
Board of adjustment: Has the power to hear and determine appeals from the refusal of building permits, appeals resulting from administrative decisions by city building inspector, and to permit exception to or variations from the zoning regulations in classes of cases or situations in accordance with the principles, conditions and procedures specified in the zoning ordinance.
Buffer: A parcel of land free of any structures, buildings, roadways, or other constructed items, and consisting of green cover.
Buildable area: The portion of a lot remaining after the required yards have been provided. Buildings may be placed in any part of the buildable area, but limitations on the per cent of the lot which may be covered by buildings may require open space within the buildable area.
Building: Any structure built for the support, the enclosure, the shelter, or the protection of chattels, persons, animals, or the like. The word "building" includes the word structure, and shall include any thing constructed or erected which requires permanent location on the ground, or is attached to anything having a permanent location on the ground; and shall include, but is not limited to, such structures as homes, hotels, motels, apartments, stores, service stations, radio towers, cooling towers, tanks, silos and billboards.
Building detached: A building surrounded by yards or other open space and on the same lot as a building.
Building, front line of: The line of that face of the building nearest to the front line of the lot.
Building line, rear: The line of that face of the building nearest to the rear line of the lot.
Building line, side: The line of that face of the building nearest to the side lines of the lot.
Building height: The vertical distance from grade to the highest finished roof surface in the case of flat roofs, or to a point at the average height or roofs having a pitch of more than one (1) foot in four and one-half (4½) feet. Height as applied to a story means the vertical distance from top to top of two (2) successive finished floor levels.
Building official: The city manager, or his authorized representative, charged with the administration and the enforcement of the zoning ordinance and building code of the City of Nassau Bay, Texas.
Building setback line: A line delineating the minimum allowable distance between the base of the building structure and the adjacent lot line.
Building site: A portion or parcel of land considered as a unit devoted to a certain use, or occupied by a building or group of buildings that are united by a common interest or use; with the customary accessories and open spaces.
Business or trade school: A vocational/technical school, language school, training center, beauty school, culinary school and comparable advanced or continuing education facilities. The phrase does not include university or college campuses, music schools, fitness centers, sports instruction, swimming instruction or martial arts instruction.
Carport: A roofed area open on one, two (2), three (3), or four (4) sides, unattached to the main building, for the storage of one or more vehicles.
Certificate of occupancy: An official, written approval by the building official setting forth that a building or structure legally complies with the Nassau Bay Zoning Ordinance and Building Code, and that the same may be used for purposes stated herein.
Child care facility, day care ("DCCCF"): A day care center, which is a state-licensed child-care facility that provides care at a location other than the residence of the director, owner or operator of the child-care facility for seven (7) or more children under fourteen (14) years of age for less than twenty-four (24) hours a day, but at least two (2) hours a day, three (3) or more days a week. See Tex. Human Resources Code § 42.002 and § 42.041.
City council: The legislative and governing body of the City of Nassau Bay, Texas.
Clinic: A facility providing medical, psychiatric or surgical service for sick or injured persons exclusively on an outpatient basis, including diagnostic services, treatment, training, administration and services to outpatients, employees or visitors. The term clinic includes immediate care facilities, where urgent care treatment is the dominant form of care provided at the facility, but does not include hospital, freestanding emergency medical care facility, or state-designated trauma center.
Commercial amusement, indoor: Uses that provide commercial amusement indoors (except adult uses), including, but not limited to:
(1)
Bowling alleys and pool rooms;
(2)
Movie theaters and live performance theaters;
(3)
Museums and aquariums;
(4)
Indoor skating rinks (ice or roller);
(5)
Indoor velodromes;
(6)
Shooting ranges (indoor), which means a building open to the general public wherein the shooting of firearms is allowed for the practice of marksmanship. This phrase does not include facilities maintained or operated by a police department or United States military branch that is not available to the general public.
(7)
Video arcades;
(8)
Local area network computer gaming centers; and
(9)
Internet cafes.
Commercial amusement, outdoor: Uses that provide commercial amusement outdoors, including, but not limited to:
(1)
Amphitheaters or other outdoor concert facilities;
(2)
Amusement parks or theme parks;
(3)
Fairgrounds;
(4)
Batting cages; and
(5)
Miniature golf establishments.
Commercial district, general: A land area designated for limited commercial facilities of a convenience nature, with a total area of not less than one-half (½) acre and not more than three (3) acres.
Commercial lodging: A place that offers overnight accommodations for short-term rental, including hotels and motels, and which may have dining rooms, restaurants, cafes or other accessory uses to serve guest needs.
(1)
Hotel means commercial lodging in which ingress to and egress from all guest rooms occurs internally within the hotel building, and that may also offer convention facilities or meeting rooms.
(2)
Motel means commercial lodging in which ingress to and egress from guest rooms usually occurs through individual entrances from outside the building, and which is of a design oriented to the short-term occupancy needs of patrons traveling by automobile.
Commercial retail: Commercial and retail uses that do not include regular outside storage or sales. The phrase "commercial retail" includes uses that are comparable to the following:
(1)
Furniture and home furnishings stores;
(2)
Electronics and appliance stores;
(3)
Paint and wallpaper stores;
(4)
Hardware stores;
(5)
Food and beverage stores;
(6)
Health and personal care stores;
(7)
Clothing and clothing accessory stores;
(8)
Sporting goods, hobby, book, music and stores;
(9)
Art sales/galleries;
(10)
General merchandise stores; and
(11)
Miscellaneous store retailers.
Common property line: A line dividing one lot from another.
Comprehensive land use plan: The official public document developed by the planning commission and city council of the City of Nassau Bay, Texas, as a policy guide to present and future land use decisions.
Condominium: A unit individually owned in a multi-unit structure, whether for residential or nonresidential use (e.g., office condominium), usually with common areas and/or facilities that the owners are mutually responsible for maintaining, typically through fees assessed on individual owners and administered through an owners association or designated property manager.
Contiguous: Lands are contiguous if they abut each other or are separated by street ways, easements, pipelines, power lines, conduits, and/or right-of-ways under ownership of the petitioner, of a governmental agency or subdivision, or of a public or private utility.
Country club: An area containing a club house available to a specific recorded membership. Such a club may include as adjunct facilities a dining room, private club, swimming pool, cabanas, tennis court, golf course and similar service and recreational facilities for the members; but shall not include living quarters. A specific use permit is required for service of alcoholic beverages.
Credit access business: A credit services organization that obtains for a consumer or assists a consumer in obtaining an extension of consumer credit in the form of a deferred presentation transaction or a motor vehicle title loan (Reference: Texas Finance Code § 393.601).
Cul-de-sac: A minor street with only one outlet terminating at one end with a circular turn around.
Deferred presentation transaction: A transaction in which:
(A)
A cash advance in whole or part is made in exchange for a personal check or authorization to debit a deposit account.
(B)
The amount of the check or authorized debit equals the amount of the advance plus a fee; and
(C)
The person making the advance agrees that the check will not be cashed or deposited or the authorized debt will not be made until a designated future date. (Reference: Texas Finance Code § 341.001)
Density: The relationship between numbers of dwelling units and land area.
Developer: Any individual, firm, co-partnership, corporation, or any other legal entity commencing proceedings under this ordinance.
District: Any certain area of Nassau Bay, Texas, to which these regulations apply, and within which the zoning regulations are uniform.
Dock, private: A structure built on or over the water, designed or used to provide anchorage for and access to one or more boats for private use. No cooking, sleeping, or business activity shall be permitted.
Dry cleaning/laundry pick-up station or laundry self-service shop: An establishment only for drop-off and pick-up of garments or other materials for dry cleaning or custom cleaning that is performed off premises; or a customer self-service laundry ("laundromat" or "wash-a-teria").
Dwelling unit: A single unit providing complete, independent living facilities for one or more persons including permanent provisions for living, sleeping, eating, cooking and sanitation.
Easement: Any strip of land created by a subdivision or granted by the owner for public or private utilities, drainage, sanitation, or other specific uses having limitations. The title to the land shall remain in the name of the proper owner, subject to the right of use designated in the reservation of the servitude.
Emission: The act of passing into the atmosphere an air contaminant or a gas stream which contains, or may contain, an air contaminant or the material.
Engineer, Registered: A professional engineer registered by the State of Texas.
Fence: A structural or natural physical barrier used to divide and/or enclose a defined area.
Final site development plan: A finished drawing showing all requirements of this ordinance, and in most cases, a further refinement of the site development plan submitted initially.
Floor, first finished: The first level of a structure, inhabited by or for the use of a private individual and/or the general public.
Firewall: A wall of noncombustible construction which subdivides a building or separates buildings to restrict the spread of fire, and which starts at the foundation and extends continuously through all stories to and above the roof, except where the roof is of fireproof or fire resistive construction, and where the wall is carried up tightly against the underside to the roof slab, pursuant to the Nassau Bay Building Code.
Floodplain: As defined by the Federal Emergency Management Agency and depicted on the flood insurance rate map and flood-boundary and floodway map dated November 18, 1982, and as they may subsequently be revised, all pursuant to enforcement of the National Flood Insurance Program 42 U.S.C. 4001-4128.
Floodway: The area of the floodplain reasonably required to carry and discharge floodwaters as defined by the Federal Emergency Management Agency, and as depicted on the flood insurance rate map and flood-boundary and floodway map dated November 18, 1982, and as they may subsequently be revised, all pursuant to enforcement of the National Flood Insurance Program 42 U.S.C. 4001-4128.
Frontage: All the property on one side of a street between two (2) intersecting streets; or if the street is a dead end, all of the property abutting on one side between an intersecting street and the dead end of the street.
Garage, private: An accessory building or a portion of a main building used for the storage of automobiles of the occupants of the main building.
Governmental services: The building of municipal government and related facilities such as, without limitation, libraries, recreational centers, public safety facilities, or city offices.
Grade: A reference plane representing the average of finished ground level adjoining the building at all exterior walls.
Gross land area: The total area, including all public and private areas within the legal boundaries of a parcel of land or project.
Ground-floor level: The ground-floor level of a building is the first livable area. Unfinished basements and storage areas for automobiles and other vehicles do not constitute a ground-floor level.
Heavy retail: Retail and/or service activities that have regular outside service or outside storage areas, exceptionally large floor areas, or partially enclosed structures, as listed below:
(1)
Permanent retail operations that are located outside of enclosed buildings, except nurseries;
(2)
Home centers;
(3)
Lumber and other building materials;
(4)
Lawn, garden equipment and related supplies stores;
(5)
Warehouse clubs and super stores; and
(6)
Equipment rental where the equipment is stored outside.
Heavy vehicle or watercraft sales or rental: A business engaged in the sales or rental of heavy trucks and/or boats.
Helistop: An area used for the take-off and landing of helicopters for the purpose of picking up and discharging of passengers or cargo. The use of the helistop is restricted to specific users or purposes (e.g., tenants of a corporate park; a hospital trauma center; etc.), and the term does not include "heliports," which are facilities for general helicopter aviation use that are not limited to a specific user or purpose.
Hospital: A "general hospital" or a "special hospital" as defined in Tex. Health and Safety Code § 241.003, and includes all subclassifications thereof, or a "freestanding emergency medical care facility" as defined in Tex. Health and Safety Code § 254.001.
(1)
General hospital means an establishment that:
(a)
Offers services, facilities and beds for use for more than twenty-four (24) hours for two (2) or more unrelated individuals requiring diagnosis, treatment or care for illness, injury, deformity, abnormality or pregnancy; and
(b)
Regularly maintains, at a minimum, clinical laboratory services, diagnostic X-ray services, treatment facilities including surgery or obstetrical care or both, and other definitive medical or surgical treatment of similar extent.
(2)
Special hospital means an establishment that:
(a)
Offers services, facilities and beds for use for more than twenty-four (24) hours for two (2) or more unrelated individuals who are regularly admitted, treated and discharged and who require services more intensive than room, board, personal services and general nursing care;
(b)
Has clinical laboratory facilities, diagnostic X-ray facilities, treatment facilities or other definitive medical treatment;
(c)
Has a medical staff in regular attendance; and
(d)
Maintains records of the clinical work performed for each patient.
(3)
Freestanding emergency medical care facility means a facility, structurally separate and distinct from a hospital, that receives an individual and provides emergency care.
Hotel: Any building containing principally sleeping rooms in which transient guests are lodged with or without meals, with no provisions made for cooking in any individual rooms or suite, and which may have dining rooms, restaurants, cafes, or accessory uses.
Kennel: Any premises where any combination of dogs, cats or other household pets, totaling four (4) or more animals, six (6) months of age or older, are kept, boarded or bred for the intention of profit or rescue.
Landscape architect: An individual duly registered and licensed as a landscape architect in the State of Texas.
Light auto service/fueling or charging station:
(1)
Gasoline service stations (including those that are associated with grocery stores and warehouse clubs) or fuel stations (e.g., hydrogen, compressed natural gas or liquefied petroleum gas) for alternative fuel vehicles;
(2)
Electric vehicle charging stations;
(3)
Gasoline, fuel station or charging station convenience marts (a gasoline service station, fuel station, and/or charging station with a convenience store);
(4)
Quick-service oil, tune-up, brake and muffler shops in which:
(a)
Repairs are made in fully enclosed bays;
(b)
Repairs are of a type that is typically completed in less than two (2) hours (e.g., oil changes, brake service, tire rotation and balancing, glass repair, battery replacement, tire replacement, fluid checks and replacement, muffler service, spark plug replacement, and comparable services); and
(c)
Vehicles are generally not stored on-site, and on the occasion when overnight storage is necessary, vehicles are stored indoors; or
(5)
Any combination of (1), (2), (3) or (4), above.
Live-work unit: A dwelling unit that provides space that is designed for a commercial or office use that is also allowed in the zoning district. Access between the dwelling unit and the commercial or office space is provided within the unit.
Lot: Either:
(1)
A lot of record, as part of a land subdivision recorded in the tax assessor's office, Nassau Bay, or
(2)
A tract of land under a unity of title document or a tract of land either subdivided or consisting of two (2) or more lots of record located in a single block, or
(3)
A tract of land, located within a single block, which at the time of filing for a building permit is designated by its owner or developer as a tract to be used entirely under a single ownership.
Lot area: The total horizontal area included within lot lines.
Lot corner: Either a lot bounded entirely by streets, or a lot which adjoins the point of intersection of two (2) or more streets.
Lot coverage: The portion of the area of a lot expressed as a percentage, occupied by all buildings or structures which are roofed or otherwise covered, and that extends more than three (3) feet above the ground level.
Lot depth: The horizontal length of a straight line drawn from the midpoint of the front property line of the lot to the midpoint of the rear property line of the lot.
Lot, frontage: The shortest property line adjacent to a public street; it is also the front property line.
Lot, interior: Any lot that is neither a corner lot, nor a through lot.
Lot, line: The boundary of a lot.
Lot, through: Any lot that has both the front and rear property line adjacent to a public street.
Lot, width: The horizontal distance between the side lot lines measured at right angles to the lot depth at a point midway between the front and rear property lines.
Medical lab: A facility offering diagnostic or pathological testing and analysis of blood, blood fluids, pathological specimens, DNA sampling and analysis, and any other diagnostic test generally recognized in the healthcare industry.
Medical office: Office space used by physicians, pediatricians, radiologists, dentists, chiropractors, physical therapists, acupuncturists and other health care professionals for the examination and/or treatment of patients on an outpatient basis, with no overnight stays by patients.
Mixed use: A mix of two (2) or more categories of uses (e.g., office and commercial retail) on the same parcel proposed for development. Mixed use includes:
(1)
Horizontally mixed use. Horizontally mixed use, or "multiple use," means that the uses are separated horizontally, and may be in separate buildings.
(2)
Vertically mixed use. Vertically mixed use means that the uses are separated vertically in a single building.
Motel: A building or group of buildings which contain sleeping accommodations for transient occupancy, and has individual entrances from outside the building to serve each sleeping unit. Motels may have one or more dining rooms, restaurants, or cafes, but no provision shall be made for cooking in the individual room or suite of rooms.
Multi-family dwelling: A dwelling unit located within a building that contains three (3) or more dwelling units that are accessed from interior elevators or hallways, or from individual exterior entrances, and are separated by interior walls and/or floors.
(1)
The term "multi-family dwelling" includes dwelling units that are located inside of mixed-use buildings.
(2)
The term "multi-family dwelling" does not include boarding houses, dormitories, fraternities, sororities, bed and breakfast establishments, single-family attached dwellings, or commercial lodging.
Nightclub: A commercial establishment that combines the consumption of alcoholic beverages (sold at the facility or brought in by patrons) on the premises with dancing and/or musical entertainment.
Nonconforming building or structure: A structure or building existing at the time of the passage of this ordinance which does not conform to the property development regulations including area, height, lot coverage, yard setbacks, lot location, or other like requirements of the district in which it is located.
Nonconforming use: A land use existing at the time of this ordinance passage which does not conform to the provisions, requirements, and regulations of the district in which it is located.
Nursery or greenhouse, retail: An enterprise that conducts the retail sale of plants, whether grown on the premises or not. The terms also include, as an accessory use, the sale of a limited selection of items (e.g., soil, planters, pruners, mulch, rock, etc., but not power equipment) that are directly related to the care and maintenance of landscapes.
Nursing home or convalescent home: An establishment that:
(1)
Furnishes, in one or more facilities, food and shelter to four (4) or more persons who are unrelated to the proprietor of the establishment; and
(2)
Provides minor treatment under the direction and supervision of a physician licensed by the Texas Medical Board, or other services that meet some need beyond the basic provision of food, shelter and laundry.
Office: Uses in which professional, business, information processing or financial services are provided. The term includes such uses as:
(1)
Accounting, auditing and bookkeeping;
(2)
Administration of businesses (e.g., corporate headquarters);
(3)
Advertising and graphic design;
(4)
Architectural, engineering, urban planning and surveying services;
(5)
Attorneys and court reporters;
(6)
Banks, mortgage companies and financial services;
(7)
Call centers;
(8)
Computer programming;
(9)
Counseling services;
(10)
Data processing and word processing services;
(11)
Detective agencies;
(12)
Government offices;
(13)
Insurance;
(14)
Interior design;
(15)
Real estate sales and leasing;
(16)
Research and development that does not include on-site manufacturing;
(17)
Retail catalog, internet and telephone order processing, but not warehousing; and
(18)
Virtual office services.
Open space: An exterior open area clear from the ground upward, devoid of residential and commercial buildings, accessory structures and impervious areas, except for those structures used exclusively for recreational purposes or as walkways or sidewalks.
Park or playground (public ownership): An open recreation facility, field, golf course, or park owned and operated by a public agency or school district and available to the general public.
Parking area: The total area devoted to the parking and maneuvering of automobiles (refer to Appendix H).
Parking facility: Parking lots or structures that are not provided as required parking for a particular use, and where a fee for use is typically charged. The phrase "parking facility" also includes facilities that provide both parking for a particular use and regular fee parking for people not connected to the use. The phrase includes small structures intended to shield attendants from the weather.
Parking lot: An open area which is used for the parking of automobiles.
Parking lot or structure (commercial): An area or structure devoted to the parking or storage of automobiles which may include in the case of a parking structure only, a facility for servicing automobiles provided such facility is primarily an internal function for the exclusive use of automobiles occupying the structure and creates no special problems of ingress and egress; the sale of petroleum products is not allowed.
Parking space: A surfaced area enclosed or unenclosed, sufficient in size to store one automobile, together with a driveway connecting the parking space to a street or alley, permitting ingress and egress of an automobile (refer to Appendix H).
Particulate matter: Any material, except uncombined water, which exists in a finely divided form as a liquid or solid at standard conditions when released into the atmosphere.
Party wall: A wall which divides two (2) adjoining properties, and on which each of the owners of the adjoining properties has rights of enjoyment.
Passenger motor vehicle sales or rental: A business that is engaged in the sale or rental of passenger vehicles, light trucks and/or motorcycles.
Patio, open porch, court: An open, unoccupied space which may be partially enclosed by wall, fence, or building and not considered part of the residential living structure.
Pawn shop: An establishment that is engaged in the business of:
(1)
Lending money on the security of pledged goods; or
(2)
Purchasing goods on condition that the goods may be redeemed or repurchased by the seller for a fixed price within a fixed period. See Tex. Finance Code § 371.003.
Personal fitness or music instruction: Uses that involve instruction or facilities for physical fitness, dance or music instruction. Such uses include membership gymnasiums (with or without personal training instruction), and instruction in music, yoga, dance, boxing, aerobic exercise or martial arts. The phrase "personal fitness or music instruction" does not include the phrase "personal services," nor the phrase "professional services, instruction or counseling."
Personal services: A use that provides non-medical services that generally (but not necessarily) are used on a recurring basis, and generally require one-to-one interaction between the proprietor or employee and the customer in order to provide the service. Examples of personal services include beauty and barber shops, body piercing studios, nail salons, tanning facilities, tattoo parlors, and tailoring. The phrase does not include the phrase "personal fitness or music instruction," nor the phrase "professional services, instruction or counseling."
(1)
Body piercing studio means a facility in which the creation of an opening in an individual's body, other than in an individual's earlobe, to insert jewelry or another decoration ("body piercing") is performed. See Tex. Health and Safety Code § 146.001.
(2)
Tanning facility means a business that provides for the use of any equipment, including a sunlamp, tanning booth and tanning bed, that emits electromagnetic radiation with wavelengths in the air between two hundred (200) and four hundred (400) nanometers, and is used for the tanning of human skin. See Tex. Health and Safety Code § 145.002.
(3)
Tattoo studio means an establishment or facility in which the practice of producing an indelible mark or figure on the human body by scarring or inserting a pigment under the skin using needles, scalpels or other related equipment is performed. The phrase "tattoo studio" also includes an establishment in which the application of permanent cosmetics is performed. See Tex. Health and Safety Code § 146.001.
Place of private assembly: A structure, or part of a structure, that can be temporarily rented for private gatherings (e.g., receptions, private parties, reunions, meetings, etc.).
Place of public assembly: An indoor place where people assemble for civic or cultural purposes. This use includes places of worship, meeting facilities and conference centers.
Planning commission: An advisory body to the city council to effect the orderly and desired growth, development and beautification of the city planning and zoning functions.
Plat: A map depicting the divisions or subdivisions of land into lots, blocks, parcels, tracts, or other portions thereof, whatever the same may be designated, prepared in accordance with the provisions of this ordinance, and those of any applicable law and/or any local ordinance.
Plat, final: A plat approved and certified by the city council and planning and zoning commission as a legal document to be used in the planning and construction of a building and/or buildings.
Plat, preliminary: A copy of the plan in sufficient form to readily compare the plat with the master plan and construction plans.
Post office: A branch of the United States Postal Service.
Private club: A building in which members of a community or association may gather for social, educational or cultural activities.
Professional services, instruction or counseling: Services that principally involve communication between the proprietor or employee and the client, and which may involve services to more than one client at a time by a single proprietor or employee, including marriage counseling, tutoring and financial planning. The phrase does not include the phrase "personal fitness or music instruction," nor the phrase "personal services."
Property line, rear: A property line opposite and most distant from the front property line. For a triangular lot, the rear property line shall mean a line ten (10) feet in length within the lot parallel to the front property line, or parallel to the chord of a curved front property line, and at the maximum distance from it.
Property owners association: A nonprofit organization, recognized as such under the laws of Texas, operated under recorded land agreements through which each owner of portion of a subdivision, be it a lot, home property or any other interest, is automatically subject to a charge for a prorated share of expenses either directly or indirectly for maintaining common properties, recreational areas, common areas, or other similar areas.
Public and private utility services: A room or portion or a building, or an area adjacent to a building, enclosed from public access and view which use is incidental to, and is required in, direct support of the primary building use.
Public park: Any publicly owned park, playground, beach parkway, or other recreational area and open space.
Radio, television or microwave towers: Structures supporting antennae for transmitting or receiving any portion of the radio spectrum, and including noncommercial antennae installations for home reception of radio or television.
Recreation facility or club: An area used for recreation and social activities either public or private.
Restaurant: An establishment that sells prepared food and beverages to customers for consumption on-site or off-site. The term "restaurant" includes:
(1)
Restaurant, drive-in or drive-through means a restaurant located either within a retail center, or situated on its own freestanding pad, which:
(a)
Contains a drive-in or drive-through facility;
(b)
Primarily serves food that is prepared and packaged within five (5) minutes; and
(c)
Customarily serves food in disposable containers.
(2)
Restaurant, no drive-in or drive-through means an establishment that serves prepared meals to customers for consumption on-site or off-site, but does not include drive-in or drive-through facilities (however, the use may include designated parking spaces for "curbside pickup" of food ordered in advance if the curbside pickup is a clearly subordinate function to the restaurant's operations), and includes:
(a)
Full-service restaurants;
(b)
Limited-service eating facilities; and
(c)
Special foodservices.
Rezoning: The legal process through by which changes are made to the boundary or boundaries of a zoning district(s) or where a new boundary or boundaries are established for zoning districts.
Right-of-way: A strip of land dedicated or deeded to the perpetual use of the public.
School, public or denominational: A school under the sponsorship of a public or religious agency, having a curriculum generally equivalent to public elementary and secondary schools; but not including trade or commercial schools or nursery schools, kindergartens or day care centers.
Setback: A line running a certain distance back from and parallel to the base building line or front property line, whichever provides the greater separation, wherein no building, structure, or portion thereof shall be permitted.
Single-family dwelling (attached): A dwelling unit which is joined to another dwelling at one or more sides by a party wall or abutting separate wall, and which is designed for occupancy by one family, and is located on a platted separate lot, delineated by front, side and rear lot lines, and is served by separate utility connections and meters as a single-family dwelling.
Single-family dwelling (detached): A dwelling unit, excluding mobile homes, designed and constructed for occupancy, and occupied by not more than one family, and located on a lot or separate building tract and having no physical connection to a building located on any other lot or tract.
Site development plan: A graphic and informative representation of a specific design solution for a development phase or the entirety, meeting the requirements of this ordinance.
Specific use permit: A permit required for a use that would not generally be appropriate but which is possible by permit of the City of Nassau Bay, Texas. Such uses shall include the service of alcoholic beverages, dancing, and other uses as determined by the city council.
Story: That part of a building between the surface of a floor and the floor immediately above (refer to ground floor level).
Street: A strip of land privately or publicly owned which affords principal means of access to abutting property.
Structure: That which is built or constructed.
Swimming pool: Any confined body of water, located either above or below the existing finished grade of the site, exceeding one hundred (100) square feet in surface area and two (2) feet in depth.
Swimming pool, residential: A swimming pool and attendant equipment maintained by an individual for the sole use of his household guest, and located in a lot as an accessory use.
Telephone exchange: Switching and relay and transmitting equipment, except for public business facilities, storage or repair facilities, radio or television transmission.
Temporary construction office: A trailer, structure, or shelter for temporary office use authorized by permit, used in connection with a development or building project, for temporary on-site administrative and supervisory functions, and shall be removed upon completion of the project.
Town house: A single-family dwelling attached to one or more other single-family dwellings by not more than two (2) party walls.
Town house, cluster: Two (2) or more town houses connected by party walls in a single building.
Utility line local: The facilities provided by a municipality or a franchised or other utility company for the distribution or collection within Nassau Bay of gas, water, sewage, surface drainage water, electric power, telephone service, or fluid used for thermal control of buildings.
Variance: A relaxation of the terms of the zoning ordinance where such variance will not be contrary to the public interest, or comprehensive land use and where, owing to conditions peculiar to the property, and not owing to actions of the applicant, a literal enforcement of the ordinance would result in exceptional hardship.
Vehicle service: Uses that perform service on automobiles, boats, motorcycles and/or recreational vehicles. The phrase does not include auto body (e.g., collision repair), paint or upholstery services.
Vehicle wash: Any area or business using self-service, in-bay automatic, or conveyor equipment for cleaning and washing motor vehicles, whether as a part of another business operation (e.g., as an accessory use to light automobile service/fueling station or vehicle sales, rental and service), or as a stand-alone operation, of any type, on a commercial basis. The phrase "vehicle wash" includes fleet and municipal in-bay automatic and conveyor vehicle wash facilities.
Vending kiosk/ATM: A machine that is located in a fixed position outdoors (either attached to a building or in a freestanding structure), which does not require employees or attendants to conduct transactions, and which is used for:
(1)
Automated banking or other financial transactions (e.g., "ATM," change machines, etc.); or
(2)
Vending or dispensing products (e.g., water, ice, DVD purchases or rentals, postal supplies, soft drinks, newspapers, snacks, ice cream, coffee or other foods or consumer items).
Veterinarian, small animal: Veterinary clinics and hospitals that provide care for small domestic animals. The phrase "veterinarian, small animal" does not include large animal and livestock veterinarians.
Yard: A required open space, clear from ground upward of any structure except for fences, walls and hedges.
Yard, front: A yard extending across the front of a lot.
Yard, interior: A yard between any structure and the side line of the lot.
Yard, rear: A yard extending across the rear of a lot.
(Ord. No. 83-301, 5-9-83; Ord. No. 86-341, § A(8), 9-8-86; Ord. No. 2000-529, 12-11-2000; Ord. No. 2009-655, § II, 11-9-09; Ord. No. O2013-712, Exh. B, 8-12-13)
Aluminum composite panel (ACP). A smooth material comprised of composite metal for external cladding of buildings on vertical, sloped or horizontal surfaces. ACPs may be applied over masonry, structural steel, stud backup, or within curtain wall designs. ACPs may be produced in numerous colors or in patterns that imitate other materials such as marble or wood.
Arcade. An arched or covered passageway attached to a building façade.
Articulation. Architectural design method in which particular elements and parts of a building are made more distinct through variation in flat surfaces and straight lines (e.g., building facades, rooflines, etc.).
Blockface. The properties abutting on one side of a street between the two (2) nearest intersecting streets or other physical features, such as a watercourse or unsubdivided land, that defines the end of the block.
Building integrated photovoltaics (BIPv). Use of photovoltaic materials to replace conventional building materials in parts of a building envelope such as the facades, roof or skylights. Photovoltaic materials generate electrical power by converting solar radiation into direct current electricity. A BIPv system serves the dual function of building skin and power generator, and is often used to add architectural interest to a building.
Cornice. A horizontal molded projection that crowns or completes the top of a building or wall.
Diameter at Breast Height (DBH): A standard method of expressing (in inches) the diameter of the trunk of a standing tree, including bark, measured 4.5 feet above ground level on the uphill side of the tree.
Dormer. An extension built out from a sloping roof to accommodate a vertical window.
Exterior Insulation and Finish System (EIFS). A method of building cladding that provides an insulating, protective and decorative finish system for exterior walls that can be installed on any type of construction, and in a variety of shapes, colors and textures to replicate other architectural styles or finish materials.
Gable. A triangular area of an exterior wall under the inverted "v" formed at the end of a pitched roof.
Green roof system. The complete or partial covering of a building roof with vegetation and a growing medium, planted over a waterproofing membrane, which may also include additional layers such as a root barrier and drainage and irrigations systems. Such rooftop systems are typically used to absorb and/or retain rainwater, provide insulation, create urban habitat for wildlife, and help to lower urban air temperatures.
Parking area: Those areas accessible to the public by vehicular and non-vehicular means and which are designated for temporary parking of motor vehicles and/or bicycles (where required or so designated), usually in places referred to as parking lots.
Parking space: A surfaced area enclosed or unenclosed, sufficient in size to store one automobile (or one or more bicycles in the case of spaces dedicated to bicycle parking), together with a driveway connecting the parking space to a street or alley, permitting ingress and egress of vehicular and non-vehicular traffic.
Score line. A notch or incision on a building façade, often in a different color and/or texture, to add variety and visual interest to exterior walls.
Standing seam metal. A side-by-side formation of panels, typically made of steel, aluminum, copper or other architectural metal, in which the panels are joined together at the sides and secured in place by concealed fasteners, with the overlapping panel lock forming a seam as a connecting point between the panels. This enables the connected panels to be used for building and roofing applications.
(Ord. No. O2013-712, Exh. B, 8-12-13)
(A)
Generally. The purpose of this appendix is to itemize the information required for particular types of development applications addressed by Appendix A, Zoning.
(Ord. No. O2013-712, Exh. B, 8-12-13)
Each application for rezoning involving changes in district boundaries shall include the following:
(A)
Privately-initiated rezonings. For rezoning requests initiated by the owner of the property or their authorized agent:
(1)
A completed application in accordance with Section 5-200, Applications, including contact information for the property owner or documentation of any agent authorized by the property owner to act on his/her behalf.
(2)
Address of the subject property, if applicable.
(3)
An accurate metes and bounds legal description of the property, along with an exhibit of the property (in digital form, if available). If only a portion of a lot or parcel is to be reclassified, the legal description, by metes and bounds, shall cover only that portion of the property to be reclassified. In either case, the property description shall be accompanied by a computation of the total acreage of the property to be reclassified to the nearest tenth of an acre.
(4)
If the property is part of a subdivision, the location of the subject property as referenced on a filed subdivision plat (block and lot numbers) or the latest available tax roll (parcel identification numbers).
(5)
If available, a map indicating the location, dimensions and uses of any existing structures, along with other property features or improvements (e.g., right-of-way lines, easements, curb cuts, fences, etc.).
(6)
A description of any applicable deed restrictions that could affect the allowable uses of the subject property.
(7)
A statement of the reasons for seeking the rezoning, and confirmation of the existing and proposed new zoning classifications, including whether multiple new classifications are proposed for separate parcels or different portions of one or more properties.
(B)
City-initiated rezonings. For rezoning requests initiated by a city decision-making body or the administrative official, in lieu of an application or fee payment as for privately-initiated rezonings:
(1)
The information required by items (2), (3) and (7) in subsection (A), above.
(2)
Information necessary for the mailed and published notices required by Section 5-600.
(3)
Multiple and non-contiguous properties. When a city-initiated rezoning involves multiple properties, some of which are not adjacent and contiguous, the city may provide a unified description and notice of the proposed action where all affected properties have the same zoning classifications, existing and proposed, and the rationale and circumstances are generally the same. Otherwise, the city shall provide a distinct description and notice where geographically separated properties would be changed to different types of zoning classifications and/or where the reasons for or the context or potential impacts of the rezoning are likely to differ by location.
(4)
City authority. The consent of the property owner(s) is not required for a city-initiated rezoning involving privately owned property.
(Ord. No. O2013-712, Exh. B, 8-12-13)
Each application for a specific use permit to allow a use subject to special regulations in the zoning districts shall include the following:
(A)
A site development plan showing the proposed layout of the subject site and the relationship of the specific use permit therein.
(B)
The submission of city-provided forms stating compliance with all requirements of the appropriate district or special regulations contained in the zoning ordinance.
(C)
A specific address and location within that address.
(Ord. No. O2013-712, Exh. B, 8-12-13)
Each application for a variance from the terms of this ordinance shall include the following:
(A)
The submission of the number of copies of the site development plan specified by the administrative official on the application form.
(B)
All information required by Section B-200.
(C)
The submission of city-provided forms stating all information required by the board of adjustment.
(Ord. No. O2013-712, Exh. B, 8-12-13)
Each application for site plan review and approval, and associated building design review where applicable, shall include the following:
(A)
Preliminary plans.
(1)
An easily readable sketch of the undeveloped land showing significant existing physical features, including trees, vegetation, watercourses, rock outcrops, etc. In the case of a marine zone application, the sketch of the undeveloped marine area shall include channels, sandbars, vegetation, etc.
(2)
A sketch depicting site size (acreage), building size (square footage) and location, and parking lot(s) configuration including auto capacity (parking ratio), which sketch will also include driveway size and location, building and parking setbacks, landscaping area, utility layout, service area and notation of the percentage of the site devoted to open space. In the case of a marine zone application, the sketch shall depict site size (area), structure size (square footage), structure height (feet), setbacks, relation of proposed structure to the abutting land area, and utility layout.
(3)
In cases where design review is required (including marine zone applications), preliminary plans for exterior design elevations, materials and colors, along with a rendering of the planned exterior building or structure appearance. These plans shall be presented in the format typically produced by a registered, professional architect.
(4)
In the case of a marine zone application, documentation indicating approval of the proposed construction from other appropriate government agencies including the Texas General Land Office and the U.S. Army Corps of Engineers, who have jurisdiction over construction in marine zones.
(B)
Final plans.
(1)
A site development plan, drawn to scale, showing uses and structures proposed for a parcel of land (or a water area in the case of a marine zone application) as required by the regulations involved, including such details as the following:
(a)
The existing and proposed conditions of the lot and major landscape features, both natural and manmade, including, but not limited to, topography, floodways, vegetation, drainageways, floodplains, watercourses and bodies and reserved open space. In the case of a marine zone application, the plan shall depict the existing and proposed conditions of the water area and major features, both natural and manmade.
(b)
The location of all existing and proposed buildings, lot lines, streets, drives, parking spaces, walkways, means of ingress and egress, drainage facilities, utility services, landscaping plan, structure and signs, lighting, screening devices, architecture, choice of building material and colors. In the case of a marine zone application, the plan shall depict the location of all existing and proposed structures, lot lines, utility services, signs, lighting, architecture, choice of building material and colors.
(c)
Any other information that may be reasonably required in order to make an informed determination pursuant to an ordinance requiring review and approval of site plans by the planning commission.
(Ord. No. O2013-712, Exh. B, 8-12-13)
Each application for site plan review and approval requires an associated landscaping plan, which shall include the following:
(A)
A plan view drawing prepared at a standard scale that ensures clarity of the proposal, which shall indicate:
(1)
Existing and proposed topography of the site, shown at one-foot contours;
(2)
Location and base flood elevation of floodplains;
(3)
Dimensions, surface area and type of planting area (e.g., landscape surface area, parking lot landscaping, etc.) for each planting area;
(4)
The location and quantity of trees and shrubs to be installed, which shall be drawn at three-fourths (¾) of mature size and annotated with genus, species, common name, drought tolerance, and size at planting;
(5)
The location, quality, size (measured as diameter at breast height, or DBH), and protected root zone of trees that are to be preserved on the site;
(6)
The location and extent of areas of groundcover; the groundcovers, turf, seed or inorganic materials to be installed or planted; and the type of underlayment proposed to be used (if any);
(7)
Dimensions of all landscape elements and any related features, including fences, walls, border edge treatments, berms, water features, bicycle racks, trash enclosures, street furniture, public art, and recreational facilities, as applicable (the administrative official may require details or specifications for landscape features or structures to be attached to the landscaping plan to facilitate subsequent inspection);
(8)
Dimensions and surfacing of all easements, pedestrian walkways and pedestrian-oriented areas (existing and proposed);
(9)
Location and dimensions of maintenance easements for drainage facilities (if any);
(10)
Location of existing and proposed overhead and underground utilities (if any);
(11)
Dimensions and slopes of stormwater detention areas (if any);
(12)
Special landscape features for stormwater detention and treatment, such as bioswales and rain gardens; and
(13)
Dimensions and locations of sight distance triangles.
(B)
Schematic drawings of typical plant installation methods, indicating whether and how the soil will be augmented to support the growth and health of the plant material.
(C)
Indication of the source(s) of irrigation water and the types of irrigation to be used (such information may be provided on a separate sheet).
(D)
A schematic irrigation plan that shows:
(1)
The proposed lap/backflow preventer and irrigation controller location;
(2)
The location of the manual gate valve that will control the entire irrigation system;
(3)
The type of irrigation proposed for each landscape area or irrigation zone (turf, shrub beds, etc.);
(4)
The proposed setback distance of all proposed irrigation heads from back of curb or edge of pavement; and
(5)
All proposed sleeve locations.
(E)
Tabular data on the landscaping plan that shows the area of each required planting area, the number of each type of plant required in each area, each plant type used, the number of plants of each type to be installed, and the genus and species of plants used to meet the requirements of this article.
(F)
The administrative official may require information regarding specific design techniques that will be used to prevent water infiltration or damage at the street section.
(Ord. No. O2013-712, Exh. B, 8-12-13)
Each application for Planned Unit Development (PUD) review and approval shall include the same information as an application for rezoning under Section B-200, above, and shall also include the following:
(A)
PUD master plan. The PUD master plan shall include both plans and written documents for the entire PUD area and shall specifically include the following as a minimum:
(1)
The location and gross acreage of each density area including the dwelling intensity of any residential areas or the lot sizes and locations of any other uses within the PUD.
(2)
The location of areas proposed to be conveyed, dedicated, or reserved for public open space, playgrounds, school sites, or public buildings.
(3)
The location of floodplains and all public streets.
(4)
The conceptual location and acreage of private streets and common open space.
(5)
The location and development criteria of all landscaped buffer areas within one hundred (100) feet inside the perimeter of the parcel.
(6)
The development controls which will be applied to assure compatibility of the proposed development with adjacent existing development and zoning districts.
(7)
The assurance of maintenance and continued protection of the PUD, including any of the common open space. This includes, but is not necessarily limited to, restrictive covenants, homeowners' association agreements, maintenance agreements, deeds, and agreements establishing easements and rights-of-way.
(8)
The public dedications and physical improvements which will be undertaken to assure compatibility with adjacent land uses and the assurance that the development will not require excessive expenditures by the city for road or utility improvements.
(9)
A plan for the location of all public utilities.
(10)
A drainage plan.
(11)
A plan showing the land uses and density of adjacent development within two hundred (200) feet of the boundary of the PUD.
(12)
A landscape plan showing the type, location, and size of existing and proposed plant materials.
(13)
Elevations, dimensions, and locations of proposed signage.
(14)
Elevations, perspectives, and material and color information of proposed buildings.
(15)
Impact studies including the effects on the existing city infrastructure (e.g., water, sanitary sewer, storm sewers) and vehicular traffic.
(B)
Scale and format. All plans shall be submitted at a suitable scale to adequately illustrate all required information and shall not result in a sheet size exceeding twenty-four (24) inches by thirty-six (36) inches. The plans should also be provided in an electronic format approved by the administrative official.
(C)
Detailed site plan. Detailed site plans, showing details in excess of those required on the PUD master plan, shall be required as part of a PUD approval. Such site plans shall meet the following criteria:
(1)
They shall be in compliance with the approved PUD master plan.
(2)
They shall contain all the detailed information required for site plan approval pursuant to Section 16.6-200 in Appendix A, Zoning, and Section B-500 in this appendix.
(D)
Conceptual development plan. If the city council, at its discretion, authorizes the substitution of a conceptual development plan for multistaged developments in place of a PUD master plan, the conceptual development plan shall:
(1)
Satisfy the submittal requirements in subsections (A) through (C), above, for the initial phase(s) of the development.
(2)
Clearly define the uses, total permitted development, and primary transportation system.
(3)
Clearly define the methods by which land uses proposed along the boundary of the proposed PUD will interface with existing adjacent development.
(4)
Set forth the manner in which the details outlined in this section shall be provided to the city for approval as part of an ongoing approval process.
(5)
Set forth all necessary terms of reference by which ongoing approvals will be evaluated.
(E)
Subdivision application. In the case of a PUD application which involves platting and requires subdivision approval, the applicant must also meet the submittal requirements of Appendix B, Subdivisions, in the City Code of Ordinances.
(Ord. No. O2013-712, Exh. B, 8-12-13)
Each application for an administrative appeal shall include the following:
(A)
Citation of the specific provisions of this ordinance for which interpretation is sought.
(B)
A description of a hypothetical situation or scenario to which the application of these regulations is in question.
(C)
A statement of the nature of the interpretation sought.
(Ord. No. O2013-712, Exh. B, 8-12-13)