General Development Regulations
Sections:
Sections:
Sections:
Sections:
Sections:
Editor's note— Ord. No. 352, § 1, adopted Nov. 28, 2018, amended Ch. 17.43 in its entirety to read as herein set out. Former Ch. 17.43, §§ 17.43.010—17.43.040, pertained to similar subject matter, and derived from Ord. 289 § 2 (Exh. A (part)), 2002.
The provisions of this chapter apply to all zones and all use classifications unless otherwise stated.
(Ord. 289 § 2 (Exh. A (part)), 2002)
The purpose of these provisions is to specify the uses that are permitted as accessory to the primary uses in the zone districts, and to establish the regulations that apply to accessory structures.
(Ord. 289 § 2 (Exh. A (part)), 2002)
A. Accessory Uses Encompassed by Primary Use. In addition to the primary uses expressly included in a use classification, each use classification shall be deemed to include such accessory uses which are specifically identified by these regulations; and such other accessory uses which are necessarily and customarily associated with, and are appropriate, incidental, and subordinate to, such primary uses. It shall be the responsibility of the director to determine if a proposed accessory use is necessarily and customarily associated with, and is appropriate, incidental, and subordinate to the primary use, based on the director's evaluation of the resemblance of the proposed accessory use to those uses specifically identified as accessory to the primary uses and the relationship between the proposed accessory use and the primary use. Determinations by the director shall be subject to appeal pursuant to Chapter 17.91, and a record of all such determinations shall be maintained by the director.
B.
Accessory Uses Subject to Regulations. Accessory uses shall be regulated in the same manner as the primary uses within each use classification, except as otherwise expressly provided by these regulations.
C.
Outdoor Storage Defined. For the purposes of this section, outdoor storage means the physical presence of any personal property not fully enclosed within a structure that is not necessarily and customarily associated with the primary use of the lot.
1.
Outdoor storage includes, but is not limited to:
a.
A "junk yard" as defined in Section 17.106.030;
b.
Junk, imported waste, and discarded or salvaged materials;
c.
Dismantled vehicles and vehicle parts;
d.
New building materials and supplies for any project for which no building permit has been issued;
e.
New or used furniture or appliances;
f.
Other miscellaneous personal property not excluded by subsection C.2 of this section.
2.
Outdoor storage does not include the following:
a.
The parking or storing for personal, non-commercial use, of operable and registered vehicles and boats, off-highway vehicles, snowmobiles, and personal watercraft; and
b.
The storage of residential building materials and supplies which are needed to construct a project on the parcel for which a building permit has been issued; and
c.
Firewood for personal, non-commercial use.
D.
Permitted Accessory Uses for a Dwelling Use Type.
1.
Home occupation, as permitted in Chapter 17.55.
2.
Garage/yard sales, with the following limitations:
a.
Three sales per calendar year at the same address;
b.
Not to exceed three calendar days per event; and
c.
As otherwise regulated in Section 17.64.030.A.3 as a temporary use.
3.
Outdoor storage, provided that:
a.
All outdoor storage in residential zones, including shipping containers where permitted, shall be screened on all sides through a combination of building design, dense landscaping at least six-foot high, and/or other solid screening material (i.e., siding, fencing). Outdoor storage that is not completely screened, as determined by the director, is not permitted;
b.
Outdoor storage on an undeveloped lot is not permitted, unless the undeveloped lot is adjacent to a developed lot under the same ownership and the outdoor storage is considered to be accessory to the primary use of the developed parcel.
4.
Shipping containers on residential lots greater than six thousand square feet, as long as the lot meets the residential zone general development standards established in Section 17.16.030.
5.
Off-street parking areas and parking structures for use by persons living, or visiting the premises.
6.
Parking for oversize vehicles in accordance with Section 10.40.087.
7.
Repair and maintenance of automobiles or other vehicles if work is being done on a vehicle registered to a resident of the premises, of not more than one automobile or other vehicle at a time if work is being done on a vehicle registered to someone other than a resident of the premises. Notwithstanding the above, repair or maintenance of any tractor-trucks or semi-trucks is not permitted in any residential zone district.
8.
Rental and sales offices for the leasing and sales of units located in the same apartment or condominium complex.
E.
Permitted Accessory Uses for Schools, Community Assembly, and Community Services Use Types.
1.
Recycling collection center for collection of newspapers only, by nonprofit organizations, when operated in conformance with Chapter 17.67 (Recycling Collection Centers).
2.
Fundraising sales and events.
3.
Outdoor storage, provided that:
a.
All outdoor storage for school, community assembly, and community services use types, including shipping containers, shall be screened from public view through a combination of building design, landscaping and berming, location, and/or other solid screening material (i.e., siding, fencing). Outdoor storage that is not completely screened, as determined by the director, is not permitted;
b.
Outdoor storage on an undeveloped lot is not permitted, unless the undeveloped lot is adjacent to a developed lot under the same ownership and the outdoor storage is considered to be accessory to the primary use of the developed parcel.
4.
Parking for oversize vehicles in accordance with Section 10.40.087.
F.
Permitted Accessory Uses for Commercial and Industrial Use Types.
1.
Automatic teller machine.
2.
Cafeteria, delicatessen, and food vending with an area of less than one thousand square feet.
3.
Fleet storage of company owned vehicles within a parking lot.
4.
Open air vending facilities, as permitted by Chapter 17.50, provided that an administrative permit has been obtained.
5.
Outdoor storage, provided that:
a.
All outdoor storage in commercial zones, including shipping containers, shall be screened from public view through a combination of building design, landscaping and berming, location, and/or other solid screening material (i.e., siding, fencing). Any outdoor storage that is not completely screened, as determined by the director, is subject to a conditional use permit;
b.
There shall be no visible storage of motor vehicles, trailers, airplanes, boats, or their composite parts except where authorized by an automobile, trailer, airplane, or boat sales business in commercial zones.
c.
Outdoor storage on an undeveloped lot is not permitted, unless the undeveloped lot is adjacent to a developed lot under the same ownership and the outdoor storage is considered to be accessory to the primary use of the developed parcel.
6.
Parking for oversize vehicles in accordance with Section 10.40.087.
7.
Recreational facilities (indoors or outdoors) for use of employees. Such facilities include, but are not limited to: basketball courts, ballfields, putting greens and volleyball courts.
8.
Recycling collection center, as permitted by Chapter 17.67.
G.
Prohibited Accessory Uses Within All Zone Districts and Use Types.
1.
Outdoor storage as defined in this section shall not be visible from any public right-of-way, except that outdoor storage of materials and equipment may be permitted consistent with the use types and permit requirements of this title.
2.
Outdoor storage shall not be permitted as a primary use on any parcel in all zones.
3.
Vehicles for Sale. No vehicles or boats shall be stored or displayed for sale on any undeveloped parcel or on any property zoned for commercial or industrial uses except where authorized for automobile sales pursuant to this title.
(Ord. No. 352, § 1, 11-28-2018; Ord. 289 § 2 (Exh. A (part)), 2002)
A.
Accessory Structures Included With Permitted Uses. In addition to the primary structures associated with permitted uses, each use classification shall be deemed to include such accessory structures which are specifically identified by these regulations, and such other accessory structures which are necessarily and customarily associated with, and are appropriate, incidental, and subordinate to, such primary structures.
1.
It shall be the responsibility of the director to determine if a proposed accessory structure is necessarily and customarily associated with, and is appropriate, incidental, and subordinate to the primary structure, based on the director's evaluation of whether the proposed accessory structure is necessary or customarily associated with the use for which the development was constructed. Determinations by the director shall be subject to appeal pursuant to Chapter 17.91, and a record of all such determinations shall be maintained by the director.
2.
All accessory structures shall be located in compliance with all other applicable requirements of the zone district in which they are located and any other permits required.
3.
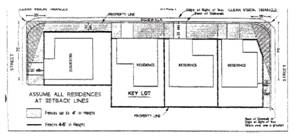
All accessory structures shall maintain the following required setbacks, unless reviewed and approved by the planning commission, as described below in Section 17.34.030.A.4: front setback = twenty feet; side setback = ten feet if adjacent to the edge of a publicly or privately maintained street, right-of-way, and/or sidewalk, or five feet for an interior lot; rear setback = ten feet. All measurements shall be measured from the back of a publicly or privately maintained street and/or sidewalk or public right-of-way, or property line in the case of side setbacks for interior lots or rear setbacks where there is no public right-of-way adjacent to the rear of the property. However, it should be noted that in certain cases, the city's right-of-way may extend further than a street or sidewalk. In these cases, the city maintains its property rights over such right-of-way and all rights and privileges included therein. The property owner is required to verify the public right-of-way prior to any construction activity.
4.
A property owner may request that the planning commission modify the required setbacks for all accessory structures if site limitations make it unreasonable or impractical to maintain such setbacks in accordance with the standards of this chapter. A request for modification of the required setbacks shall be accompanied by a site plan that demonstrates the subject property, adjacent parcels and right-of-way, and proposed location of the accessory structure. The site plan shall be drawn to scale.
B.
Accessory Structures Subject to Regulations. Accessory structures shall be regulated in the same manner as the primary structures within each zoning district, except as otherwise expressly provided by these regulations. Accessory structures may be established concurrently or following the construction of a primary structure.
C.
Permitted Accessory Structures to Dwelling Use Type (Single-Family and Two-Family).
1.
Attached and detached garages and carports.
a.
Carports shall meet the following requirements:
i.
Snow load of eighty pounds per square foot.
ii.
Wind speed of seventy miles per hour.
iii.
Temporary carports may be sited anywhere on the property such that there is no snow shedding onto adjacent property or public right-of-way.
iv.
Applicant shall submit a set of plans to the building department that demonstrates all requirements are met.
2.
Decks. Uncovered decks under thirty inches in height are permitted anywhere on a parcel, provided, however, that all required setbacks are maintained, unless reviewed and approved by the planning commission. Any deck which is thirty inches or taller in height, as measured from the pad grade of the parcel at the foundation of the house and maintaining a level plane to the highest point of the deck sheathing, shall maintain all required setbacks, unless reviewed and approved by the planning commission (Section 17.34.030.A.4), and shall be located consistent with residential clear vision triangle requirements of Section 17.16.030.B.
3.
Shade structures, including attached or detached shade structures, covered patios or gazebos. Such structures are not subject to any site coverage requirements but are subject to the following requirements:
a.
The structure shall not enclose any area equal to or greater than twenty percent on any side not attached to the residence;
b.
The structure shall not be constructed of materials which would create a year-round livable area;
c.
The structure shall not exceed fifteen feet in height; and
d.
The structure shall maintain all required setbacks, unless reviewed and approved by the planning commission (Section 17.34.030.A.4).
4.
Buildings or structures less than one hundred twenty square feet and:
a.
Less than seven feet in height.
i.
General. Detached buildings or structures less than or equal to one hundred twenty square feet in floor area and less than seven feet in height may be located anywhere within a parcel, but shall maintain all required setbacks.
b.
Greater than seven feet in height, and:
i.
The maximum height is fifteen feet and one story;
ii.
All required setbacks shall be maintained, unless reviewed and approved by the planning commission (Section 17.34.030.A.4);
iii.
Twelve and one-half feet from the back of sidewalk or edge of right-of-way on corner lots; and
iv.
For each foot in height above ten feet, the required setback shall be increased by one foot.
5.
Building(s) or structure(s) greater than one hundred twenty square feet. Accessory buildings or structures located on the same lot that individually or cumulatively are equal to or greater than one hundred twenty square feet in floor area are subject to the following requirements:
a.
General.
i.
All required setbacks shall be maintained, unless reviewed and approved by the planning commission (Section 17.34.030.A.4).
ii.
A maximum of seven hundred square feet of detached building(s) or structure(s) is permitted on the same lot. Additional square footage of detached accessory building(s) or structure(s), in excess of seven hundred square feet, may be permitted upon approval of a conditional use permit.
iii.
A minimum six-foot separation shall be maintained from any other building or structure located on the same lot.
iv.
An extension of the main building or accessory building roof (e.g., a breezeway) may connect the accessory building to the primary building, but it shall not be considered part of (attached to) the main (primary) building. The breezeway and accessory building must maintain all required setbacks, unless reviewed and approved by the planning commission (Section 17.34.030.A.4). In addition, any accessory structure located less than six feet from a primary building shall be considered attached to (and part of) the primary building for purposes of this article.
v.
Additions to primary structures that exceed seven hundred square feet in area may be permitted upon approval of a conditional use permit, which may include a public hearing as provided in Sections 17.82.010 and 17.88.020.
b.
For buildings greater than seven feet in height, the following shall apply:
i.
The maximum height is fifteen feet and one story;
ii.
All required setbacks shall be maintained, unless reviewed and approved by the planning commission (Section 17.34.030.A.4);
iii.
Twelve and one-half feet from the back of sidewalk or edge of right-of-way on corner lots; and
iv.
For each foot in height above ten feet, the required setback, except for the front yard setback, shall be increased by one foot.
c.
For buildings less than or equal to seven feet in height, the following setbacks shall be maintained:
i.
All required setbacks shall be maintained, unless reviewed and approved by the planning commission (Section 17.34.030.A.4).
6.
Fences and Walls. A maximum six-foot high fence (including lattice and similar attachments) or wall, may be located anywhere on a parcel consistent with the following requirements:
a.
The maximum height shall be reduced as follows in each situation listed below:
i.
Within a residential clear vision triangle, the maximum height shall be reduced to thirty-six inches in height (see definition);
ii.
Within a required front setback, the maximum height shall be reduced to four feet in height outside the clear vision triangle; or
iii.
Within five feet of the back of the publicly or privately maintained sidewalk or in the absence of a sidewalk the back of the street or right-of-way of a street-side for a corner lot or within ten feet of the back of the publicly or privately maintained sidewalk, street, or right-of-way of a street-side for a corner lot adjacent to a key lot, the maximum height shall be reduced to four feet in height outside the clear vision triangle.
b.
A fence or wall that is adjacent to an alleyway may be constructed to a maximum height of six feet, including lattice and similar attachments.
c.
When there is a difference in the ground level between two adjoining parcels, the height of any fence or wall constructed along a common property line shall be determined by using the finished grade of the highest contiguous parcel.
d.
The height of a fence or wall may be increased a maximum of two feet to provide for noise attenuation or buffering of adjacent land uses, subject to approval of an administrative permit pursuant to Section 17.82.010.A. Fences and walls in excess of eight feet may be permitted subject to the approval of a conditional use permit.
e.
No fence or wall in a residential district may include security attachments that may cause bodily harm, including but not limited to, barbed wire, razor wire, electrified fencing, or other similar attachments.
f.
The provisions of this section shall not apply to any fence or wall required by any law or regulation of the city or state.
7.
Flag poles. The pole may be maximum of thirty feet in height and shall maintain a minimum of ten-foot setback from any property line. Flagpoles shall be subject to review by the city building inspector who may require the flagpole to be engineered.
8.
Security facilities. Including security gates and gate houses at a project entrance.
9.
Antennas. Including HAM radio, radio and television receiving antennas subject to requirements of Chapter 17.52.
10.
Children's play equipment. Including playsets, playhouses and tree houses.
11.
Recreation facilities. Including recreation activity courts and facilities, swimming pools, spas and hot tubs.
12.
Satellite dishes. Satellite dishes as allowed in Chapter 17.52.
13.
Entry arbors. Entry arbors may be located within the required front yard setback provided they do not cover more than twenty-five square feet in area and do not exceed a height of ten feet.
D.
Permitted Accessory Structures to Dwelling Use Type (Multi-family).
1.
Carports, garages, bicycle lockers, and off-street parking areas.
a.
Carports shall meet the following requirements:
i.
Snow load of eighty pounds per square foot.
ii.
Wind speed of seventy miles per hour.
iii.
Temporary carports may be sited anywhere on the property such that there is no snow shedding onto adjacent property or public right-of-way.
iv.
Applicant shall submit a set of plans to the building department that demonstrates all requirements are met.
2.
Decks. Uncovered decks under thirty inches in height are permitted anywhere on a lot, provided however, that required setbacks are maintained unless reviewed and approved by the planning commission. Any deck of thirty inches or taller, as measured from the pad grade of the lot at the foundation of the dwelling and maintaining a level plane to the highest point of the deck sheathing, shall maintain all required setbacks, unless reviewed and approved by the planning commission (Section 17.34.030.A.4) and shall be located consistent with residential clear vision triangle requirements of Section 17.16.030.B.
3.
Shade structures, including attached or detached shade structures, covered patios, arbors, or gazebos. Such structures are not subject to any site coverage requirements but are subject to the following requirements:
a.
The structure shall not enclose any area equal to or greater than twenty percent on any side not attached to the residence;
b.
The structure shall not be constructed of materials that would create a year round livable area;
c.
The structure shall not exceed fifteen feet in height; and
d.
The structure shall maintain all required setbacks, unless reviewed and approved by the planning commission (Section 17.34.030.A.4).
4.
Fences and Walls. A maximum six-foot high fence (including lattice and similar attachments) or wall, may be located anywhere on a parcel consistent with the following requirements:
a.
The maximum height shall be reduced as follows in each situation listed below:
i.
Within a residential clear vision triangle, the maximum height shall be reduced to thirty-six inches in height (see definition);
ii.
Within a required front setback, the maximum height shall be reduced to four feet in height outside the clear vision triangle; or
iii.
Within five feet of the back of the sidewalk or right-of-way of a street-side for a corner lot or within ten feet of the back of the sidewalk or right-of-way of a street-side for a corner lot adjacent to a key lot, the maximum height shall be reduced to four feet in height outside the clear vision triangle.
b.
A fence or wall that is adjacent to an alley way may be constructed to a maximum height of six feet, including lattice and similar attachments.
c.
When there is a difference in the ground level between two adjoining parcels, the height of any fence or wall constructed along a common property line shall be determined by using the finished grade of the highest contiguous parcel.
d.
The height of a fence or wall may be increased a maximum of two feet to provide for noise attenuation or buffering of adjacent land uses, subject to approval of an administrative permit pursuant to Section 17.82.010.A. Fences and walls in excess of eight feet may be permitted subject to the approval of a conditional use permit.
e.
No fence or wall in a residential district may include security attachments that may cause bodily harm, including but not limited to, barbed wire, razor wire, electrified fencing, or other similar attachments.
f.
The provisions of this section shall not apply to any fence or wall required by any law or regulation of the city or state.
5.
Flag poles. The pole may be maximum of thirty feet in height and shall maintain a minimum of ten-foot setback from any property line and subject to review of city building inspector. Flagpoles shall be subject to review of the city building inspector who may require the flagpole to be engineered.
6.
Security facilities. Including security gates and gate houses at a project entrance.
7.
Antennas. Including HAM radio, radio and television receiving antennas subject to the requirements of Chapter 17.52.
8.
Recreation facilities. Including recreation activity courts and facilities, children's play equipment, swimming pools, spas and hot tubs.
9.
Satellite dishes. Satellite dishes as allowed in Chapter 17.52.
10.
Signs, as permitted by Chapter 17.76 of this code.
11.
Transit facilities.
12.
Trash enclosures and recycling facilities.
E.
Permitted Accessory Structures to Commercial and Industrial Use Types.
1.
Carports, garages, bicycle lockers, and off-street parking areas and structures.
a.
Carports shall meet the following requirements:
i.
Snow load of eighty pounds per square foot.
ii.
Wind speed of seventy miles per hour.
iii.
Temporary carports may be sited anywhere on the property such that there is no snow shedding onto adjacent property or public right-of-way.
iv.
Applicant shall submit a set of plans to the building department that demonstrates all requirements are met.
2.
Shade structures, including arbors and gazebos.
3.
Detached enclosed storage.
4.
Detached unenclosed storage buildings and pole buildings associated with the outdoor display of building materials, nursery stock, or other materials which are typically displayed outdoors or under a canopy.
5.
Fences and walls, except that no fence or wall in excess of thirty-six inches in height may be located within a commercial clear vision triangle (see definition).
6.
Flag poles. The pole may be maximum of thirty feet in height and shall maintain a minimum of ten-foot setback from any property line and city building inspector review. Flagpoles shall be subject to review of the city building inspector who may require the flagpole to be engineered.
7.
Security facilities. Including security gates and gate houses at a project entrance.
8.
Antennas. Including HAM radio, radio and television receiving antennas subject to the requirements of Chapter 17.52.
9.
Recreation facilities. Including recreation activity courts and facilities for use by employees.
10.
Satellite dishes. Satellite dishes as allowed in Chapter 17.52.
11.
Signs, as permitted by Chapter 17.76 of this code.
12.
Transit facilities.
13.
Trash enclosures and recycling facilities.
F.
Prohibited Accessory Structures Within All Use Types.
1.
Fences. The use of security attachments that may cause bodily harm, including but not limited to, barbed wire, razor wire, electrified fencing, or similar attachments in conjunction with any fence, wall, or hedge, or by itself is prohibited, except in the following circumstances:
a.
In a commercial or industrial district, for security purposes, where the security attachments (barbed wire, razor wire, electrified fencing, or similar attachments) are located a minimum of six feet above the ground;
b.
Where required by any permit condition, law or regulation of the city or state.
(Ord. No. 352, § 1, 11-28-2018; Ord. 304 §§ 3, 4, 6, 2003; Ord. 289 § 2 (Exh. A (part)), 2002)
The purpose of these provisions of this chapter is to regulate nonconforming uses, structures and parcels, and to establish conditions under which nonconforming uses, structures and parcels, may be expanded, structurally altered or developed.
(Ord. 289 § 2 (Exh. A (part)), 2002)
A.
Applicability. These regulations shall apply to all nonconforming uses, structures and parcels lawfully constructed or created in compliance with this code and state law.
B.
Nonconforming Use. A nonconforming use may be continued, provided that no such use shall be enlarged or increased, nor extended to occupy a greater area than that which it lawfully occupied before becoming a nonconforming use except as otherwise allowed in this chapter or as follows:
1.
Residential use in a commercial or industrial zone. The nonconforming use of a residential building in a nonresidential district may continue to be used as a residence subject to the residential zone development standards requirements of Section 17.16.030.A (R1 district), until such time as the building is condemned, removed, or converted.
2.
Nonresidential use in a residential zone. No expansion or modification of a nonresidential use in a residential zone shall be permitted.
3.
Expansion of a nonconforming use in a commercial or industrial zone. A nonconforming use, except for a residential use, in a commercial or industrial zone may be expanded or modified provided that a conditional use permit is first secured.
4.
Substitution of nonconforming use. Except as otherwise prohibited in Section 17.37.020.C.2, a nonconforming use may be substituted with a different nonconforming use provided it has the same, or a less intensive, use classification, only upon approval of a conditional use permit. Such a new nonconforming use shall occupy the same area that is occupied by the existing nonconforming use.
C.
Nonconforming Structure. A nonconforming structure may be used and maintained except as otherwise specified in this chapter or as follows:
1.
Residential buildings.
a.
Enlargement, extension, reconstruction, or structural alteration of a building designed as a dwelling, that is nonconforming only as to height and setback regulations is permitted if such additions or improvements conform to all other applicable provisions of this title, and the new construction does not expand the nonconformity.
b.
Enlargement, extension, reconstruction, or structural alteration of a building designed as a dwelling in a nonresidential district is permitted if such additions or improvements conform to all provisions of the district and the new construction does not expand the nonconformity.
2.
Nonresidential buildings.
a.
Enlargement, extension, reconstruction, or structural alteration of a building designed for nonresidential purposes that is nonconforming only as to height and setback regulations is permitted if such additions or improvements conform to all other applicable provisions of this title and the new construction does not expand the nonconformity.
b.
Enlargement, extension, reconstruction, or structural alteration of a building designed for nonresidential purposes in a residential zone is not permitted.
D.
Nonconforming Off-Street Parking. Reconstruction or structural alteration of a building with nonconforming parking or loading facilities, is permitted provided there is no expansion of use requiring additional parking as required by Section 17.40.030. The existing nonconforming parking and loading for the building may remain unchanged.
E.
Damaged and Destroyed Nonconforming Buildings.
1.
Damaged building. A nonconforming building which is damaged by fire or calamity destroying fifty percent or less of its value, as determined by the building inspector, may be reconstructed, provided the structure shall not increase the degree of nonconformity.
2.
Destroyed building.
a.
Building with a nonconforming use. The reconstruction of a building that is damaged by fire or calamity in excess of fifty percent of its value, as determined by the building inspector, which at the time was devoted to a nonconforming use, may obtain a building permit and begin reconstruction within three hundred sixty-five days of the event without the approval of a conditional use permit. If reconstruction has not begun within three hundred sixty-five days of the event, then the nonconforming use may be reconstructed only upon the approval of a conditional use permit. The nonconforming use shall not occupy a larger area of the reconstructed building than was occupied prior to its destruction. No portion of the building, as reconstructed, shall be located within the floodplain overlay zone.
b.
Nonconforming building. The reconstruction of a building that is damaged by fire or calamity in excess of fifty percent of its value, as determined by the building inspector, which at the time was a nonconforming building, may be reconstructed only upon approval of a variance. The nonconforming building may be enlarged provided that any enlargement does not increase the nonconformity. The reconstruction of the building shall occur within twelve months after the date of damage. No portion of the building as reconstructed, shall be located within the floodplain overlay zone.
F.
Loss of Nonconforming Status. Except as provided in Section 17.37.020(B)(1) of this chapter or where a shorter time period is specified by this title, a nonconforming use of a parcel or a nonconforming use of a conforming building which is discontinued for a period of six months shall be deemed abandoned. Without further action by the city, further use of the parcel or structure shall comply with all the regulations of the zone district in which the parcel or structure is located, and all other applicable provisions of this title.
(Ord. 310 § 1, 2005; Ord. 289 § 2 (Exh. A (part)), 2002)
A parcel that does not comply with the minimum requirement of this title for the zone district in which it is located, may be used as a building site if it complies with the criteria specified below. It shall be the responsibility of the applicant to produce sufficient evidence to establish the following:
A.
Approved Subdivision. The parcel was created as part of a subdivision approved by the planning commission or city council pursuant to a duly adopted ordinance of the City of Portola and in compliance with the Subdivision Map Act (Government Code Section 66410 et seq.).
(Ord. 289 § 2 (Exh. A (part)), 2002)
The requirements for off-street parking established by this chapter are intended (1) to minimize traffic congestion and hazards to motorists and pedestrians, (2) to provide safe, attractive, and convenient off-street parking facilities with vehicular access to all land uses, (3) to provide off-street parking in proportion to the needs generated by varying land uses, (4) to ensure access to projects by emergency response vehicles, and (5) to ensure that parking areas are compatible with the surrounding land uses.
(Ord. 289 § 2 (Exh. A (part)), 2002)
All approved land uses shall be designed and developed to provide the number of off-street parking spaces required by Section 17.40.030 (Parking Space Requirements by Use Type), and designed as required by Section 17.40.040 (Design and Improvement of Parking).
A.
Handicapped Accessible Parking. Parking lots shall include the number of handicapped accessible parking spaces as required by Title 24 of the California Code of Regulations. Handicapped accessible spaces count toward the total number of parking spaces required by Section 17.40.030. Handicapped parking spaces shall be designed as provided in Section 17.40.040(A)(1)(a).
B.
Company Vehicles. In addition to the number of off-street parking spaces required by Section 17.40.030 (Parking Space Requirements by Use Type), non-residential uses shall provide one off-street parking space for each company vehicle that is parked on the site during normal business hours. These spaces may be located within a building.
C.
Bicycle Spaces. A minimum of one bicycle space shall be provided for each twenty required parking spaces up to one hundred spaces. For each additional one hundred required parking spaces or portion thereof, one bicycle space shall be provided or another minimum number of bicycle spaces as determined by the planning commission. Any bicycle space required as part of the transportation system management plan can be counted to fulfill the requirements of this section.
D.
Accessibility and Usability. All required off-street parking spaces shall be designed, located, constructed and maintained so as to be fully and independently usable and accessible at all times. The usability of required parking spaces shall be maintained as follows:
1.
Required off-street parking spaces shall not be used for any purpose that at any time would prevent vehicles from parking in required parking spaces, except as permitted by Chapter 17.73 (Temporary Uses).
2.
Driveways shall not be used for any purpose that would prevent vehicle access to parking spaces, or inhibit circulation or emergency service response.
3.
All required parking spaces must be available for use by tenants, customers and visitors to the site at all times. Parking spaces shall not be reserved for an individual tenant or customer, or be reserved for a limited period of time.
(Ord. 289 § 2 (Exh. A (part)), 2002)
The number of off-street parking spaces required for the land uses identified by Article II (Zoning Districts and Permitted Uses) shall be as provided by this section, except where parking requirements are established by Article IV (Special Area and Specific Use Requirements) for a particular use.
A.
Number of spaces required. The number of off-street parking spaces required for new uses shall be based upon the use type, listed below, except as may be modified by subsections C or D of this section.
1.
Terms used in tables. The following terms are used throughout the tables and are defined below:
a.
"Square feet" means the total gross building/tenant space area;
b.
"Use area" means the total of gross building/tenant space area plus the gross area of any outdoor/storage/activity.
2.
Civic Use Types shall provide off-street parking spaces as follows:
3.
Residential use types shall provide off-street parking spaces as follows:
4.
Commercial use types shall provide off-street parking spaces as follows, but no fewer than two spaces for each separate commercial use or tenant:
5.
Industrial use types shall provide off-street parking spaces as follows, but no fewer than two spaces for each separate industrial use or tenant:
6.
Transportation and communication use types shall provide off-street parking spaces as follows:
B.
Special Parking Requirements. The number of parking spaces required for uses not specifically listed in subsection A shall be determined by the director based on common functional, product or compatibility characteristics and activities, as provided for in Section 17.13.050
1.
New buildings or development projects without known tenants. If the type of tenants that will occupy a nonresidential building are not known at the time of the development entitlement or building permit approval, the amount of parking to be provided shall be the minimum number of parking spaces required by subsection A for any land use allowed on the site by the applicable zoning, provided that the director determines the proposed building as designed can reasonably accommodate such use.
2.
Mixed-use projects. Where a project contains more than one major use classification (such as a residential and a commercial use), the amount of parking to be provided shall be the total of that required for each use, except as otherwise provided by subsection C below.
3.
Tenant spaces with multiple functions. When a tenant has several functions, such as sales and office, the amount of parking to be provided for the tenant shall be calculated as specified by subsection A for the primary use, using the gross floor area of the tenant space.
4.
Changes in use. When an existing use is enlarged, increased or intensified, or a new use having greater parking requirements than the previous use is proposed, the required number of parking spaces for the new use or existing, enlarged, increased or intensified use shall be calculated as specified by subsection A.
5.
Rounding off. When the required number of parking spaces is other than a whole number, the total number of spaces shall be rounded up to the nearest whole number.
C.
Adjustment to Number of Required Parking Spaces. The number of parking spaces required by subsection A, above, may be modified as follows:
1.
Precise plan provisions. Provisions may be made in a precise plan to allow reductions in the number of required parking spaces based upon special provisions, such as providing golf cart or electric car parking where special provisions are made for golf carts or electric cars.
2.
Parking reductions for shared parking. If an applicant believes the number of parking spaces required for their building complex as specified in subsection A (which is the sum of all the users within the building complex) is not applicable because the hours of operation of different tenants/uses within the building complex will effectively allow for dual use of the parking spaces then the applicant may request an administrative permit. The approving authority shall be the director. If the director finds that the hours of operation of different tenants/uses within the building complex will in fact allow for dual use of the parking spaces, then the director shall issue an administrative permit. The applicant shall have the burden of proof for requesting a reduction in the total number of required off-street parking spaces, and documentation shall be submitted substantiating this request. Shared parking reductions shall only be approved by the approving authority if:
a.
A sufficient number of spaces are provided to meet the greatest parking demand of the participating uses;
b.
Satisfactory evidence is provided describing the nature of the uses and the times when the uses operate so as to demonstrate the lack of potential conflict between them;
c.
Overflow parking will not impact any adjacent use; and
d.
Additional documents, covenants, deed restrictions, or other agreements as may be deemed necessary by the director are executed to assure that the required parking spaces provided are maintained and uses with similar hours and parking requirements as those uses sharing the parking facilities remain for the life of the project.
3.
Parking reductions for an individual use. If an applicant for a proposed use believes the number of parking spaces required for their use as specified in subsection A is not applicable because their use functions differently than the generic use type and associated parking standards established in this title, then the applicant may request an administrative permit. The approving authority shall be the director. If the director finds that the use functions differently than the generic use type and associated parking standards established in this title, due to the specific nature of the business in question, then the director shall issue an administrative permit. The applicant shall have the burden of proof for requesting a reduction in the total number of required off-street parking spaces, and documentation shall be submitted substantiating the request. Such documentation may include, but is not limited to: a parking study of another facility of the same use which is similar in size and operation, calculating the required parking spaces with field data of peak parking usage. Reduced parking shall only be approved by the approving authority if:
a.
Satisfactory evidence is provided describing the nature of the use, the operation and data from other facilities or similar facilities so as to demonstrate that the required parking standards are excessive and the proposed parking standards are appropriate; and
b.
Overflow parking will not impact any adjacent use.
D.
Downtown Core and Old Town Overlay Areas—Parking Requirements. All principally permitted uses in historic areas of the city (downtown core and old town overlay areas), with the exception of community assembly, colleges and universities, and new uses requiring a discretionary permit, shall be permitted without the need to provide additional off-street parking.
Community assembly, college and university uses, and new uses which require a discretionary permit, shall comply with the parking standards specified in Section 17.40.030(A), or request approval of a parking reduction or variance from the parking standards from the planning commission.
Downtown core and old town overlay areas may be required to participate in any approved assessment district to alleviate parking constraints, unless adequate off-street parking is provided as required in this title.
(Ord. 289 § 2 (Exh. A (part)), 2002)
Parking spaces and areas shall be designed in accordance with this section.
A.
Parking Lot and Parking Space Design and Layout. Except where otherwise provided by Section 17.40.030(C) parking spaces shall be designed as follows:
1.
Parking space design. Except as provided below, all parking spaces shall be standard spaces, designed to accommodate full-size passenger vehicles.
a.
Parking space sizes. Standard spaces shall be a minimum of nine feet by eighteen feet; compact car spaces shall be a minimum of eight feet by sixteen feet; and parallel parking spaces shall be a minimum of ten feet wide by twenty-two feet long. Handicapped spaces shall be a minimum of nine feet by eighteen with a five foot loading area; a handicapped van space shall be a minimum of nine feet by eighteen feet with an eight foot loading area, or as otherwise required by state law.
b.
Compact car space substitution. Parking lots with a minimum of twenty parking spaces may substitute standard spaces with compact spaces for up to thirty percent of the total parking spaces required. Each compact space shall be labeled "COMPACT" or "C".
c.
Motorcycle space substitution. Parking lots with a minimum of forty parking spaces may substitute standard parking spaces with motorcycle spaces. One standard parking space may be replaced with a motorcycle space for each forty required standard parking spaces. Motorcycle spaces shall be a minimum size of three by six feet.
2.
Parking lot design. The design and layout of parking lots shall conform to the following standards:
a.
Circulation aisle width with parking. The minimum width of a two-way drive aisle providing access to parking spaces shall be twenty-four feet. The minimum width of a one-way drive aisle providing access to parking spaces shall be as follows:
Other parking designs utilizing other parking angles may be permitted upon approval of the planning commission.
b.
Circulation aisle width without parking. The minimum width of a two-way drive aisle with no parking on either side of the drive aisle is twenty feet. The minimum width of a one-way drive aisle with no parking on either side of the drive aisle is twelve feet.
c.
Circulation aisle for emergency access. The minimum width of a drive aisle needed for an emergency response vehicle shall be twenty feet.
d.
Vehicular overhang: Vehicular overhang is permitted, provided no vehicle shall overhang into a sidewalk that would reduce the unencumbered width of a sidewalk to less than four feet. A vehicle is permitted to overhang into a landscaped area by two feet, provided that the required landscaped area is extended by two feet.
e.
Perimeter landscaping. Where a parking lot is adjacent to a public right-of-way, a landscape planter shall be established and continuously maintained between the public right-of-way and the parking lot. The director shall review and approve the landscape plan. In addition, all unused right-of-way between the public street and the parking lot shall be landscaped and maintained by the property owner.
f.
Bicycle racks. When bicycle spaces are provided, a bicycle rack shall be installed. The bicycle rack shall be designed to allow a bicycle to be secured to the rack. The location of the bicycle rack shall not encroach into the sidewalk that would reduce the unencumbered width of the sidewalk to less than four feet or prohibit the free movement of pedestrian traffic.
g.
Curb stops. A permanent curb, bumper, wheel stop or similar device at least six inches in height shall be installed adjacent to sidewalks, planters and other landscaping areas, parking lot fixtures and buildings and walls to protect these improvements from vehicular damage. The stopping edge of such protected devices shall be placed no closer than two feet from the above noted improvement.
h.
Parking space design. When possible, all parking spaces shall be delineated and separated by striping, as shown on the typical stall illustration below. The striping shall be maintained in a clear and visible manner.
B.
Controlled Access Required. All parking spaces (including garage spaces) required for any land use other than a single-family or two-family dwelling shall be designed and located to provide for vehicle maneuvering on the site so that vehicles will enter any adjacent public right-of-way or private road in a forward direction.
C.
Location of Parking on a Single-Family Residential Lot. Parking spaces may be located as needed on a site, provided that no required parking space or aisle other than a driveway providing access to a street shall be located within a front or street side setback required by Article II except as provided in Section 17.70.040.G (Second Units), or other use types according to Section 17.40.030.
D.
Surfacing of Parking Areas. Required parking and circulation areas shall be surfaced with asphalt concrete or Portland cement concrete, or other approved all-weather, hard, non-eroding surface. It shall be the responsibility of the property owner to insure that the surface is maintained free from significant cracks or holes.
E.
Drive-Through Facilities. The following requirements apply to any use with drive-through facilities:
1.
Separation and Marking of Lanes. Drive-through aisles shall be a minimum of twelve feet wide and shall be separated from other circulation aisles necessary for ingress or egress, or aisles providing access to any parking space. Each such aisle shall be striped, marked, or otherwise distinctly delineated.
F.
Loading Requirements. Loading shall be provided as identified below:
1.
No maneuvering within public rights-of-way. All site designs shall be designed so as to prevent truck back-up maneuvering within the public right-of-way.
2.
Design. The location, number, size and access of the loading area shall be determined pursuant to design review.
(Ord. 289 § 2 (Exh. A (part)), 2002)
The regulations set forth in this chapter apply in Medium Density Residential (MDR), High Density Residential (HDR), and Commercial Mixed Use (CMU) zoning districts.
(Ord. No. 352, § 1, 11-28-2018)
In accordance with Cal. Gov't Code §§ 65915, 65915.5, 65915.7, and 65917, this chapter is intended to provide incentives for the production of housing for very low income, lower income, and senior households and for the production of housing for moderate income households residing in condominium and planned development projects. In enacting this chapter, it is also the intent of the City of Portola to facilitate the development of affordable housing and to implement the goals, objectives, and policies of the city's housing element.
(Ord. No. 352, § 1, 11-28-2018)
A.
Subject to the findings included in Section 17.43.110, the city shall grant a twenty percent density bonus to a developer of a housing development who seeks a density bonus and agrees to construct at least one of the following and any additional replacement housing units required by subsection D of this section:
1.
Ten percent of the total units of the housing development as target units affordable to lower income households; or
2.
Five percent of the total units of the housing development as target units affordable to very low income households; or
3.
A senior citizen housing development. The density bonus for a senior citizen housing development is limited to twenty percent of the number of senior housing units.
B.
Subject to the findings included in Section 17.43.110, the city shall grant a five percent density bonus to a developer of a housing development who seeks a density bonus and agrees to provide all of the following and any additional replacement housing units required by subsection D of this section:
1.
Ten percent of the total units in the housing development as target units for sale to moderate income households at an affordable sales price; and
2.
The housing development is a common interest development; and
3.
All of the dwelling units in the housing development are offered to the public for sale.
C.
Subject to the findings included in Section 17.43.110, the city shall grant a density bonus of 20 percent of the type of units listed in subsection C.1 of this section to a developer of a housing development who seeks a density bonus and agrees to provide all of the following and any additional replacement housing units required by subsection D of this section:
1.
Ten percent of the total units in the housing development for transitional foster youth, as defined in Cal. Educ. Code § 66025.9; disabled veterans, as defined in Cal. Gov't Code § 18541; or homeless persons, as defined in the federal McKinney-Vento Homeless Assistance Act (42 U.S.C. 11301 et seq.); and
2.
The units described in subsection C.1 of this section are subject to a recorded restriction requiring that the units remain affordable to very low income households for fifty-five years.
D.
Replacement housing shall be provided on a site which meets both of the following conditions:
1.
Rental housing is now located or was located on the site at any time in the five-year period preceding the date of submittal of the density bonus application; and
2.
The rental housing is or was, during that five-year period:
a.
Subject to a recorded covenant, ordinance, or law restricting rents to levels affordable to very low and lower income households;
b.
Subject to any form of public rent or price control; or
c.
Occupied by very low or lower income households.
A housing development subject to this subsection D is not eligible for a density bonus, incentive, concession, waiver, or modified parking provided by this chapter unless the proposed housing development contains one of the following, whichever results in a greater number of affordable units:
i.
The percentage of target units specified in subsections A, B, or C of this section; or
ii.
The replacement affordable units specified in Cal. Gov't Code §§ 65915(c)(3)(B) and (C).
E.
The density bonus for which the housing development is eligible shall increase if the percentage of very low income, lower income, or moderate income target units is increased, as follows:
1.
For each one percent increase above ten percent in the percentage of units affordable to lower income households, the density bonus shall be increased by one and one-half percent up to a maximum of thirty-five percent.
2.
For each one percent increase above five percent in the percentage of units affordable to very low income households, the density bonus shall be increased by two and one-half percent up to a maximum of thirty-five percent.
3.
For each one percent increase above ten percent of the percentage of units affordable to moderate income households, the density bonus shall be increased by one percent up to a maximum of thirty-five percent.
When calculating the maximum residential density and the number of permitted density bonus units, any calculations resulting in fractional units shall be rounded to the next larger integer.
F.
The density bonus units shall not be included when determining the number of target units required to qualify for a density bonus. When calculating the required number of target units, any calculations resulting in fractional units shall be rounded to the next larger integer.
G.
The developer may request a lesser density bonus than the project is entitled to, but no reduction will be permitted in the number of required target units pursuant to subsections A through D of this section. Regardless of the number of target units, no housing development may be entitled to a density bonus of more than thirty-five percent.
H.
Each housing development is entitled to only one density bonus, which may be selected based on the percentage of either very low income target units, lower income target units, or moderate income target units, the project's status as a senior citizen housing development, or the project's provision of housing for transitional foster youth, disabled veterans, or homeless persons. Density bonuses from more than one category may not be combined.
I.
Subject to the findings included in Section 17.43.110, when a developer seeks a density bonus, the city shall grant incentives or concessions listed in Section 17.43.100 as follows:
1.
One incentive or concession for projects that include at least ten percent of the total units for lower income households, at least five percent for very low income households, or at least ten percent for persons and families of moderate income in a common interest development.
2.
Two incentives or concessions for projects that include at least twenty percent of the total units for lower income households, at least ten percent for very low income households, or at least twenty percent for persons and families of moderate income in a common interest development.
3.
Three incentives or concessions for projects that include at least thirty percent of the total units for lower income households, at least fifteen percent for very low income households, or at least thirty percent for persons and families of moderate income in a common interest development.
J.
In accordance with state law, neither the granting of a concession or incentive nor the granting of a density bonus shall be interpreted, in and of itself, to require a general plan amendment, zoning change, or other discretionary approval.
K.
The following tables summarize this information:
Density Bonus Summary Table
Incentives/Concessions Summary Table
(Ord. No. 352, § 1, 11-28-2018)
A.
When a developer of a housing development donates land to the city as provided in this section and meets the requirements of Section 17.43.030.D, the developer shall be entitled to a fifteen percent increase above the otherwise allowable maximum residential density for the housing development. For each one percent increase above the minimum ten percent land donation described in subsection B.2 of this section, the density bonus shall be increased by one percent, up to a maximum of thirty-five percent. This increase shall be in addition to any increase in density allowed by Section 17.43.030, up to a maximum combined density bonus of thirty-five percent if a developer seeks both the increase required pursuant to this section and Section 17.43.030. When calculating the allowable maximum residential density and the number of permitted density bonus units, any calculations resulting in fractional units shall be rounded to the next larger integer.
B.
A housing development shall be eligible for the density bonus described in this section if the city makes all of the following findings:
1.
The developer will donate and transfer the land no later than the date of approval of the final subdivision map, parcel map, application for the housing development, or first building permit, if no map is required.
2.
The developable acreage and zoning classification of the land being transferred are sufficient to permit construction of units affordable to very low income households in an amount equal to at least ten percent of the number of residential units of the proposed development, or will permit construction of a greater percentage of units if proposed by the developer.
3.
The transferred land is at least one acre in size or of sufficient size to permit development of at least forty units, has the appropriate general plan designation, is zoned with appropriate standards to allow development at a density of at least thirty units per acre, and is now or at the time of construction will be served by adequate public facilities and infrastructure. No later than the date of approval of the final subdivision map, parcel map, application for the housing development, or first building permit, if no map is required, the transferred land will have all of the permits and approvals, other than building permits, necessary for the development of the very low income housing units on the transferred land.
4.
The transferred land and the very low income units constructed on the land will be subject to a deed restriction ensuring continued affordability of the units consistent with this chapter, which restriction will be recorded on the property at the time of transfer.
5.
The land will be transferred to the city, other public agency, or to a housing developer approved by the city. The city reserves the right to require the developer to identify a developer of the very low income units and to require that the land be transferred to that developer.
6.
The transferred land is within the boundary of the proposed housing development. The transferred land may be located within one-quarter mile of the boundary of the proposed housing development; provided, that the city additionally makes all of the findings included in Section 17.43.040.B.
7.
A proposed source of funding for the very low income units shall be identified no later than the date of approval of the final map, parcel map, application for the housing development, or first building permit, if no map is required.
(Ord. No. 352, § 1, 11-28-2018)
A.
When a developer proposes to construct a commercial development and has entered into a partnered housing agreement approved by the city, the city shall grant a commercial development bonus mutually agreed upon by the developer and the city. The commercial development bonus shall not include a reduction or waiver of fees imposed on the commercial development to provide for affordable housing.
B.
The partnered housing agreement shall include all of the following provisions:
1.
The housing development shall be located either on the site of the commercial development or on a site within the city that is within one-half mile of a major transit stop and is located in close proximity to public amenities, including schools and employment centers.
2.
At least thirty percent of the total units in the housing development shall be made available at affordable ownership cost or affordable rent for low-income households, or at least fifteen percent of the total units in the housing development shall be made available at affordable ownership cost or affordable rent for very low income households.
3.
The commercial developer must agree either to directly build the target units; donate a site consistent with subsection B.1 of this section for the target units; or make a cash payment to the housing developer for the target units.
C.
Any approved partnered housing agreement shall be described in the city's housing element annual report as required by Cal. Gov't Code § 65915.7(k).
(Ord. No. 352, § 1, 11-28-2018)
A.
When a developer proposes to construct a housing development that includes target units as specified in Sections 17.43.020.A through D and includes a child care facility that will be located on the premises of, as part of, or adjacent to the housing development, the city shall grant either of the following if requested by the developer:
1.
An additional density bonus that is an amount of square feet of residential space that is equal to or greater than the amount of square feet in the child care facility.
2.
An additional concession or incentive that contributes significantly to the economic feasibility of the construction of the child care facility.
B.
A housing development shall be eligible for the density bonus or concession described in this section if the city makes all of the following findings:
1.
The child care facility will remain in operation for a period of time that is as long as or longer than the period of time during which the target units are required to remain affordable pursuant to Section 17.43.080.
2.
Of the children who attend the child care facility, the percentage of children of very low income households, lower income households, or moderate income households shall be equal to or greater than the percentage of dwelling units that are proposed to be affordable to very low income households, lower income households, or moderate income households.
3.
Notwithstanding any requirement of this section, the city shall not be required to provide a density bonus or concession for a child care facility if it finds, based upon substantial evidence, that the community already has adequate child care facilities.
(Ord. No. 352, § 1, 11-28-2018)
A.
The city shall grant either a density bonus or other incentives of equivalent financial value if the applicant for a condominium conversion agrees to provide thirty-three percent of the total units of the proposed condominium project as target units affordable to lower or moderate income households, or to provide fifteen percent of the total units in the condominium conversion project as target units affordable to lower income households, and to provide any replacement affordable units required by Section 17.43.030.D. All such target units shall remain affordable for the period specified in Section 17.43.080.B.
B.
For purposes of this section, a "density bonus" means an increase in units of twenty-five percent over the number of apartments to be provided within the existing structure or structures proposed for conversion. "Other incentives of equivalent financial value" shall not be construed to require the city to provide a cash transfer payment or other monetary compensation of any type but may include, at the city's discretion, modification of requirements that the city might otherwise apply as conditions of approval.
C.
No condominium conversion shall be eligible for a density bonus if the apartments proposed for conversion constitute a housing development for which a density bonus or other incentives were previously provided pursuant to this chapter or Cal. Gov't Code § 65915.
D.
Nothing in this section shall be construed to require the city to approve a condominium conversion.
(Ord. No. 352, § 1, 11-28-2018)
A.
Target units shall be constructed concurrently with market-rate units or pursuant to a schedule included in the density bonus housing agreement. No temporary or permanent certificate of occupancy for any new market-rate unit in a housing development or for commercial space in a commercial development shall be issued until permanent certificates of occupancy have been issued for the required target units unless explicitly permitted by the density bonus housing agreement or partnered housing agreement.
B.
Target units offered for rent to lower income and very low income households shall be made available for rent at an affordable rent. Target units offered for sale to very low, lower, or moderate income households shall be sold at an affordable ownership cost. All target units offered for rent shall remain restricted and affordable to the designated income group for a minimum period of fifty-five years. All target units offered for sale shall remain restricted and affordable to the designated income group for a minimum period of thirty years. A longer period of time may be specified if required by any construction or mortgage financing assistance program, mortgage insurance program, or rental subsidy program applicable to the housing development.
C.
Provisions for the continued affordability of target units shall be consistent with those specified in Section 17.43.080.
D.
Target units shall be built on-site, unless off-site construction is approved pursuant to Section 17.43.040 or 17.43.050, and shall be dispersed within the housing development. The number of bedrooms of the target units shall be equivalent to the bedroom mix of the market-rate units in the housing development, except that the developer may include a higher proportion of target units with more bedrooms. The design and appearance of the target units shall be compatible with the design of the total housing development. Housing developments and commercial developments shall comply with all applicable development standards, except those which may be modified as provided by this chapter.
(Ord. No. 352, § 1, 11-28-2018)
A.
If a housing development is eligible for a density bonus, upon the request of the developer, the city shall not require a vehicular parking ratio, inclusive of handicapped and guest parking, that exceeds the following ratios:
1.
Zero to one bedroom: one on-site parking space.
2.
Two to three bedrooms: two on-site parking spaces.
3.
Four and more bedrooms: two and one-half parking spaces.
B.
For certain other housing developments that are eligible for a density bonus, upon the request of the developer, the city shall not require a vehicular parking ratio, inclusive of handicapped and guest parking, that exceeds the ratios shown in the following table. However, if the city, at its cost, has conducted an area-wide or city-wide parking study in the last seven years, then the city may find, based on substantial evidence, that a higher parking ratio is required than shown in the following table. In no event may the required parking be greater than the ratio provided in subsection A of this section. The parking study must conform to the requirements of Cal. Gov't Code § 65915(p)(7).
C.
If the total number of parking spaces required for a development by this section is other than a whole number, the number shall be rounded up to the next whole number. For purposes of this section, a development may provide "on-site parking" through tandem parking or uncovered parking, but not through on-street parking.
(Ord. No. 352, § 1, 11-28-2018)
A.
Incentives or concessions that may be requested pursuant to Sections 17.43.030.I and 17.43.060.A, may include the following:
1.
A reduction of site development standards or a modification of zoning code requirements or architectural design requirements which exceed the minimum building standards provided in Cal. Health and Safety Code Division 13, Part 2.5 (commencing with § 18901) and which result in identifiable and actual cost reductions to provide for affordable ownership costs or affordable rents, including, but not limited to:
a.
Reduced minimum lot size and/or dimension.
b.
Reduced minimum lot setback.
c.
Reduced minimum outdoor and/or private outdoor living area.
d.
Increased maximum lot coverage.
e.
Increased maximum building height and/or stories.
f.
Reduced minimum building separation requirement.
g.
Reduced street standard, such as reduced minimum street width.
2.
Approval of mixed-use development in conjunction with the housing development if nonresidential land uses will reduce the cost of the housing development and if the city finds that the proposed nonresidential uses are compatible with the housing development and with existing or planned development in the area where the proposed housing development will be located.
3.
Incentives for affordable units listed in Section 17.43.040.A.
4.
Modifications of those development standards included in Section 17.43.080.D.
5.
Deferred development impact fees (e.g., capital facilities, park land in lieu, park facilities, fire, or traffic impact fees).
6.
Other regulatory incentives or concessions proposed by the developer or the city which result in identifiable and actual cost reductions to provide for affordable ownership costs or affordable rents.
B.
Developers may seek a waiver or modification of any development standard that will physically preclude the construction of a housing development meeting the criteria of Sections 17.43.030.A through D at the density or with the concessions or incentives permitted by this chapter. The applicant shall bear the burden of demonstrating that the development standards that are requested to be waived will have the effect of physically precluding the construction of the housing development with the density bonus and incentives.
C.
Nothing in this section requires the provision of direct financial incentives for the housing development, including but not limited to the provision of financial subsidies, publicly owned land, fee waivers, or waiver of dedication requirements. The city, at its sole discretion, may choose to provide such direct financial incentives.
(Ord. No. 352, § 1, 11-28-2018)
A.
An application for a density bonus, incentive, concession, waiver, modification, modified parking standard, or commercial development bonus pursuant to this chapter shall be submitted with the first application for approval of a housing development or commercial development and processed concurrently with all other applications required for the housing development or commercial development. An applicant shall be informed whether the application is complete consistent with Cal. Gov't Code § 65943. The application shall be submitted on a form prescribed by the city and shall include at least the following information:
1.
Site plan showing total number of units, number and location of target units, and number and location of proposed density bonus units.
2.
Summary table showing the maximum number of units permitted by the zoning and general plan excluding any density bonus units, proposed target units by income level, proposed bonus percentage, number of bonus units proposed, and total number of dwelling units proposed on the site.
3.
Tenure (rental versus for-sale) of target units and proposals for ensuring affordability.
4.
A description of all dwelling units existing on the site in the five-year period preceding the date of submittal of the application and identification of any units rented in the five-year period. If dwelling units on the site are currently rented, income and household size, if known, of all residents of currently occupied units. If any dwelling units on the site were rented in the five-year period but are not currently rented, the income and household size, if known, of residents occupying dwelling units when the site contained the maximum number of dwelling units.
5.
Description of any recorded covenant, ordinance, or law applicable to the site that restricted rents to levels affordable to very low or lower income households in the five-year period preceding the date of submittal of the application.
6.
Description of any requested incentives, concessions, waivers or modifications of development standards, or modified parking standards.
7.
For all incentives and concessions except mixed-use development, to establish eligibility for the requested incentives and concessions, the application shall include evidence that the requested incentives and concessions result in identifiable and actual cost reductions, including the actual cost reduction achieved through the incentive, and evidence that the cost reduction allows the applicant to provide affordable rents or affordable ownership costs.
8.
If a mixed-use building or project is proposed as an incentive, the applicant shall provide evidence that nonresidential land uses will reduce the cost of the residential project, and that the nonresidential land uses are compatible with the residential project and the existing or planned surrounding development.
9.
For waivers or modifications of development standards, the application shall provide evidence that the development standard for which the waiver is requested will have the effect of physically precluding the construction of the housing development with the density bonus and incentives requested.
10.
If a parking reduction is requested, a table showing parking required by the zoning ordinance and proposed parking. If a parking reduction provided by Section 17.43.090.B is requested, evidence that the project is eligible for the requested parking reduction.
11.
If a density bonus or concession is requested for a land donation, the application shall show the location of the land to be dedicated and provide evidence that each of the findings included in Section 17.43.040.B can be made.
12.
If a commercial development bonus is requested for a commercial development, the application shall include the proposed partnered housing agreement, the proposed commercial development bonus, and evidence that each of the standards included in Section 17.43.050.B has been met.
13.
If a density bonus or concession is requested for a child care facility, the application shall show the location and square footage of the child care facilities and provide evidence that each of the findings included in Section 17.43.060.B can be made.
14.
If a density bonus or incentive is requested for a condominium conversion, the application shall provide evidence that all of the requirements found in Section 17.43.070 can be met.
B.
An application for a density bonus, incentive, concession, waiver, modification, modified parking standard, or commercial development bonus for a housing development or a commercial development pursuant to this chapter shall be considered by and acted upon by the approval body with authority to approve the housing development or commercial development within the timelines prescribed by Cal. Gov't Code §§ 65950 et seq. Any decision regarding a density bonus, incentive, concession, waiver, modification, modified parking standard or commercial density bonus may be appealed to the planning commission and from the planning commission to the city council. In accordance with state law, neither the granting of a concession or incentive, nor the granting of a density bonus, shall be interpreted, in and of itself, to require a general plan amendment, zoning change, variance, or other discretionary approval.
C.
Before approving an application for a density bonus, incentive, concession, waiver, modification, or commercial development bonus, the approval body shall make the following findings, as applicable:
1.
A finding that the housing development is eligible for the density bonus and any incentives, modified parking, or waivers requested and includes any replacement affordable units required by Section 17.43.030.D.
2.
A finding that any requested incentive will result in identifiable and actual cost reductions to provide for affordable rents or affordable ownership costs based upon the documentation provided by the applicant.
3.
If the density bonus is based all or in part on donation of land, the findings included in Section 17.43.040.B.
4.
If the density bonus, incentive, or concession is based all or in part on the inclusion of a child care facility, the findings included in Section 17.43.060.B.
5.
If the incentive or concession includes mixed-use development, the findings included in Section 17.43.100.A.2.
6.
If a waiver or modification is requested, a finding that the development standards for which the waiver is requested would have the effect of physically precluding the construction of the housing development with the density bonus and incentives permitted.
7.
If the density bonus, incentive, or concession is based all or in part on a condominium conversion, a finding that the project complies with the requirements of Section 17.43.070.
8.
If a commercial development bonus is requested, a finding that the project complies with the requirements of Section 17.43.050, that the city has approved the partnered housing agreement, and that the bonus has been mutually agreed upon by the city and the commercial developer.
D.
If a request for a concession or incentive is otherwise consistent with this chapter, the approval body may deny a concession or incentive only if it makes a written finding, based upon substantial evidence, of one of the following:
1.
The concession or incentive does not result in identifiable and actual cost reductions to provide for affordable rents or affordable ownership costs.
2.
The concession or incentive would have a specific adverse impact upon public health or safety or the physical environment or on any real property that is listed in the California Register of Historical Resources, and there is no feasible method to satisfactorily mitigate or avoid the specific adverse impact without rendering the development unaffordable to lower and moderate income households.
3.
The concession or incentive is contrary to state or federal law.
E.
If a request for a waiver or modification is otherwise consistent with this chapter, the approval body may deny a waiver or modification only if it makes a written finding, based upon substantial evidence, of one of the following:
1.
The waiver or modification would have a specific adverse impact upon health, safety, or the physical environment, and there is no feasible method to satisfactorily mitigate or avoid the specific adverse impact without rendering the development unaffordable to lower and moderate income households.
2.
The waiver or modification would have an adverse impact on any real property that is listed in the California Register of Historical Resources.
3.
The waiver or modification is contrary to state or federal law, which may include a finding that the development standards for which the waiver is requested would not have the effect of physically precluding the construction of the housing development with the density bonus and incentives permitted.
F.
If a density bonus or concession is based on the provision of child care facilities, the approval body may deny the bonus or concession if it finds, based on substantial evidence, that the city already has adequate child care facilities.
(Ord. No. 352, § 1, 11-28-2018)
A.
If any density bonus, incentive, concession, waiver, modified parking, or commercial development bonus is approved pursuant to this chapter for a housing development, a density bonus housing agreement shall be made a condition of the discretionary planning permits. The density bonus housing agreement shall be a legally binding agreement between the applicant and the city to ensure that the requirements of this chapter are satisfied and shall be binding on all future owners and successors in interest. The density bonus housing agreement may be combined with the affordable housing agreement and other documents required by Chapter 17.43. The executed density bonus housing agreement shall be approved by the city attorney and shall be recorded against the housing development or the commercial development, as applicable, prior to final or parcel map approval, or, where a map is not being processed, prior to issuance of any building permit for the housing development or commercial development.
B.
The density bonus housing agreement for a housing development or commercial development shall include, but not be limited to the following:
1.
The total number of units approved for the housing development, the number, location, and level of affordability of target units, and the number of density bonus units.
2.
Standards for determining affordable rent or affordable ownership cost for the target units.
3.
The location, unit size in square feet, and number of bedrooms of target units.
4.
Provisions to ensure affordability in accordance with Sections 17.43.080.B and C.
5.
A schedule for completion and occupancy of target units in relation to construction of market-rate units or construction of the commercial development, as applicable.
6.
A description of any incentives, concessions, waivers, reductions, modified parking, or commercial development bonus being provided by the city.
7.
A description of remedies for breach of the agreement by either party. The city may identify tenants or qualified purchasers as third party beneficiaries under the agreement.
8.
Procedures for qualifying tenants and prospective purchasers of target units.
9.
Financing of ongoing administrative and monitoring costs.
10.
Other provisions to ensure implementation and compliance with this chapter.
C.
In the case of for-sale housing developments, the density bonus housing agreement shall include the following conditions governing the sale and use of target units during the applicable use restriction period:
1.
Target units shall be owner-occupied by eligible very low, lower, or moderate income households, or by qualified residents in the case of senior citizen housing developments.
2.
The purchaser of each target unit shall execute an instrument approved by the city and to be recorded against the parcel, including such provisions as the city may require to ensure continued compliance with this chapter.
D.
In the case of rental housing developments, the density bonus housing agreement shall provide for the following:
1.
Procedures for establishing affordable rent, filling vacancies, and maintaining target units for eligible tenants;
2.
Provisions requiring verification of household incomes;
3.
Provisions requiring maintenance of records to demonstrate compliance with this subsection; and
4.
The developer's agreement that the restrictions on rents are consistent with the Costa-Hawkins Act (Cal. Civ. Code §§ 1954.51 through 1954.535).
E.
Density bonus housing agreements for child care facilities and land dedication shall ensure continued compliance with all conditions included in Sections 17.43.060 and 17.43.040, respectively.
(Ord. No. 352, § 1, 11-28-2018)
General Development Regulations
Sections:
Sections:
Sections:
Sections:
Sections:
Editor's note— Ord. No. 352, § 1, adopted Nov. 28, 2018, amended Ch. 17.43 in its entirety to read as herein set out. Former Ch. 17.43, §§ 17.43.010—17.43.040, pertained to similar subject matter, and derived from Ord. 289 § 2 (Exh. A (part)), 2002.
The provisions of this chapter apply to all zones and all use classifications unless otherwise stated.
(Ord. 289 § 2 (Exh. A (part)), 2002)
The purpose of these provisions is to specify the uses that are permitted as accessory to the primary uses in the zone districts, and to establish the regulations that apply to accessory structures.
(Ord. 289 § 2 (Exh. A (part)), 2002)
A. Accessory Uses Encompassed by Primary Use. In addition to the primary uses expressly included in a use classification, each use classification shall be deemed to include such accessory uses which are specifically identified by these regulations; and such other accessory uses which are necessarily and customarily associated with, and are appropriate, incidental, and subordinate to, such primary uses. It shall be the responsibility of the director to determine if a proposed accessory use is necessarily and customarily associated with, and is appropriate, incidental, and subordinate to the primary use, based on the director's evaluation of the resemblance of the proposed accessory use to those uses specifically identified as accessory to the primary uses and the relationship between the proposed accessory use and the primary use. Determinations by the director shall be subject to appeal pursuant to Chapter 17.91, and a record of all such determinations shall be maintained by the director.
B.
Accessory Uses Subject to Regulations. Accessory uses shall be regulated in the same manner as the primary uses within each use classification, except as otherwise expressly provided by these regulations.
C.
Outdoor Storage Defined. For the purposes of this section, outdoor storage means the physical presence of any personal property not fully enclosed within a structure that is not necessarily and customarily associated with the primary use of the lot.
1.
Outdoor storage includes, but is not limited to:
a.
A "junk yard" as defined in Section 17.106.030;
b.
Junk, imported waste, and discarded or salvaged materials;
c.
Dismantled vehicles and vehicle parts;
d.
New building materials and supplies for any project for which no building permit has been issued;
e.
New or used furniture or appliances;
f.
Other miscellaneous personal property not excluded by subsection C.2 of this section.
2.
Outdoor storage does not include the following:
a.
The parking or storing for personal, non-commercial use, of operable and registered vehicles and boats, off-highway vehicles, snowmobiles, and personal watercraft; and
b.
The storage of residential building materials and supplies which are needed to construct a project on the parcel for which a building permit has been issued; and
c.
Firewood for personal, non-commercial use.
D.
Permitted Accessory Uses for a Dwelling Use Type.
1.
Home occupation, as permitted in Chapter 17.55.
2.
Garage/yard sales, with the following limitations:
a.
Three sales per calendar year at the same address;
b.
Not to exceed three calendar days per event; and
c.
As otherwise regulated in Section 17.64.030.A.3 as a temporary use.
3.
Outdoor storage, provided that:
a.
All outdoor storage in residential zones, including shipping containers where permitted, shall be screened on all sides through a combination of building design, dense landscaping at least six-foot high, and/or other solid screening material (i.e., siding, fencing). Outdoor storage that is not completely screened, as determined by the director, is not permitted;
b.
Outdoor storage on an undeveloped lot is not permitted, unless the undeveloped lot is adjacent to a developed lot under the same ownership and the outdoor storage is considered to be accessory to the primary use of the developed parcel.
4.
Shipping containers on residential lots greater than six thousand square feet, as long as the lot meets the residential zone general development standards established in Section 17.16.030.
5.
Off-street parking areas and parking structures for use by persons living, or visiting the premises.
6.
Parking for oversize vehicles in accordance with Section 10.40.087.
7.
Repair and maintenance of automobiles or other vehicles if work is being done on a vehicle registered to a resident of the premises, of not more than one automobile or other vehicle at a time if work is being done on a vehicle registered to someone other than a resident of the premises. Notwithstanding the above, repair or maintenance of any tractor-trucks or semi-trucks is not permitted in any residential zone district.
8.
Rental and sales offices for the leasing and sales of units located in the same apartment or condominium complex.
E.
Permitted Accessory Uses for Schools, Community Assembly, and Community Services Use Types.
1.
Recycling collection center for collection of newspapers only, by nonprofit organizations, when operated in conformance with Chapter 17.67 (Recycling Collection Centers).
2.
Fundraising sales and events.
3.
Outdoor storage, provided that:
a.
All outdoor storage for school, community assembly, and community services use types, including shipping containers, shall be screened from public view through a combination of building design, landscaping and berming, location, and/or other solid screening material (i.e., siding, fencing). Outdoor storage that is not completely screened, as determined by the director, is not permitted;
b.
Outdoor storage on an undeveloped lot is not permitted, unless the undeveloped lot is adjacent to a developed lot under the same ownership and the outdoor storage is considered to be accessory to the primary use of the developed parcel.
4.
Parking for oversize vehicles in accordance with Section 10.40.087.
F.
Permitted Accessory Uses for Commercial and Industrial Use Types.
1.
Automatic teller machine.
2.
Cafeteria, delicatessen, and food vending with an area of less than one thousand square feet.
3.
Fleet storage of company owned vehicles within a parking lot.
4.
Open air vending facilities, as permitted by Chapter 17.50, provided that an administrative permit has been obtained.
5.
Outdoor storage, provided that:
a.
All outdoor storage in commercial zones, including shipping containers, shall be screened from public view through a combination of building design, landscaping and berming, location, and/or other solid screening material (i.e., siding, fencing). Any outdoor storage that is not completely screened, as determined by the director, is subject to a conditional use permit;
b.
There shall be no visible storage of motor vehicles, trailers, airplanes, boats, or their composite parts except where authorized by an automobile, trailer, airplane, or boat sales business in commercial zones.
c.
Outdoor storage on an undeveloped lot is not permitted, unless the undeveloped lot is adjacent to a developed lot under the same ownership and the outdoor storage is considered to be accessory to the primary use of the developed parcel.
6.
Parking for oversize vehicles in accordance with Section 10.40.087.
7.
Recreational facilities (indoors or outdoors) for use of employees. Such facilities include, but are not limited to: basketball courts, ballfields, putting greens and volleyball courts.
8.
Recycling collection center, as permitted by Chapter 17.67.
G.
Prohibited Accessory Uses Within All Zone Districts and Use Types.
1.
Outdoor storage as defined in this section shall not be visible from any public right-of-way, except that outdoor storage of materials and equipment may be permitted consistent with the use types and permit requirements of this title.
2.
Outdoor storage shall not be permitted as a primary use on any parcel in all zones.
3.
Vehicles for Sale. No vehicles or boats shall be stored or displayed for sale on any undeveloped parcel or on any property zoned for commercial or industrial uses except where authorized for automobile sales pursuant to this title.
(Ord. No. 352, § 1, 11-28-2018; Ord. 289 § 2 (Exh. A (part)), 2002)
A.
Accessory Structures Included With Permitted Uses. In addition to the primary structures associated with permitted uses, each use classification shall be deemed to include such accessory structures which are specifically identified by these regulations, and such other accessory structures which are necessarily and customarily associated with, and are appropriate, incidental, and subordinate to, such primary structures.
1.
It shall be the responsibility of the director to determine if a proposed accessory structure is necessarily and customarily associated with, and is appropriate, incidental, and subordinate to the primary structure, based on the director's evaluation of whether the proposed accessory structure is necessary or customarily associated with the use for which the development was constructed. Determinations by the director shall be subject to appeal pursuant to Chapter 17.91, and a record of all such determinations shall be maintained by the director.
2.
All accessory structures shall be located in compliance with all other applicable requirements of the zone district in which they are located and any other permits required.
3.
All accessory structures shall maintain the following required setbacks, unless reviewed and approved by the planning commission, as described below in Section 17.34.030.A.4: front setback = twenty feet; side setback = ten feet if adjacent to the edge of a publicly or privately maintained street, right-of-way, and/or sidewalk, or five feet for an interior lot; rear setback = ten feet. All measurements shall be measured from the back of a publicly or privately maintained street and/or sidewalk or public right-of-way, or property line in the case of side setbacks for interior lots or rear setbacks where there is no public right-of-way adjacent to the rear of the property. However, it should be noted that in certain cases, the city's right-of-way may extend further than a street or sidewalk. In these cases, the city maintains its property rights over such right-of-way and all rights and privileges included therein. The property owner is required to verify the public right-of-way prior to any construction activity.
4.
A property owner may request that the planning commission modify the required setbacks for all accessory structures if site limitations make it unreasonable or impractical to maintain such setbacks in accordance with the standards of this chapter. A request for modification of the required setbacks shall be accompanied by a site plan that demonstrates the subject property, adjacent parcels and right-of-way, and proposed location of the accessory structure. The site plan shall be drawn to scale.
B.
Accessory Structures Subject to Regulations. Accessory structures shall be regulated in the same manner as the primary structures within each zoning district, except as otherwise expressly provided by these regulations. Accessory structures may be established concurrently or following the construction of a primary structure.
C.
Permitted Accessory Structures to Dwelling Use Type (Single-Family and Two-Family).
1.
Attached and detached garages and carports.
a.
Carports shall meet the following requirements:
i.
Snow load of eighty pounds per square foot.
ii.
Wind speed of seventy miles per hour.
iii.
Temporary carports may be sited anywhere on the property such that there is no snow shedding onto adjacent property or public right-of-way.
iv.
Applicant shall submit a set of plans to the building department that demonstrates all requirements are met.
2.
Decks. Uncovered decks under thirty inches in height are permitted anywhere on a parcel, provided, however, that all required setbacks are maintained, unless reviewed and approved by the planning commission. Any deck which is thirty inches or taller in height, as measured from the pad grade of the parcel at the foundation of the house and maintaining a level plane to the highest point of the deck sheathing, shall maintain all required setbacks, unless reviewed and approved by the planning commission (Section 17.34.030.A.4), and shall be located consistent with residential clear vision triangle requirements of Section 17.16.030.B.
3.
Shade structures, including attached or detached shade structures, covered patios or gazebos. Such structures are not subject to any site coverage requirements but are subject to the following requirements:
a.
The structure shall not enclose any area equal to or greater than twenty percent on any side not attached to the residence;
b.
The structure shall not be constructed of materials which would create a year-round livable area;
c.
The structure shall not exceed fifteen feet in height; and
d.
The structure shall maintain all required setbacks, unless reviewed and approved by the planning commission (Section 17.34.030.A.4).
4.
Buildings or structures less than one hundred twenty square feet and:
a.
Less than seven feet in height.
i.
General. Detached buildings or structures less than or equal to one hundred twenty square feet in floor area and less than seven feet in height may be located anywhere within a parcel, but shall maintain all required setbacks.
b.
Greater than seven feet in height, and:
i.
The maximum height is fifteen feet and one story;
ii.
All required setbacks shall be maintained, unless reviewed and approved by the planning commission (Section 17.34.030.A.4);
iii.
Twelve and one-half feet from the back of sidewalk or edge of right-of-way on corner lots; and
iv.
For each foot in height above ten feet, the required setback shall be increased by one foot.
5.
Building(s) or structure(s) greater than one hundred twenty square feet. Accessory buildings or structures located on the same lot that individually or cumulatively are equal to or greater than one hundred twenty square feet in floor area are subject to the following requirements:
a.
General.
i.
All required setbacks shall be maintained, unless reviewed and approved by the planning commission (Section 17.34.030.A.4).
ii.
A maximum of seven hundred square feet of detached building(s) or structure(s) is permitted on the same lot. Additional square footage of detached accessory building(s) or structure(s), in excess of seven hundred square feet, may be permitted upon approval of a conditional use permit.
iii.
A minimum six-foot separation shall be maintained from any other building or structure located on the same lot.
iv.
An extension of the main building or accessory building roof (e.g., a breezeway) may connect the accessory building to the primary building, but it shall not be considered part of (attached to) the main (primary) building. The breezeway and accessory building must maintain all required setbacks, unless reviewed and approved by the planning commission (Section 17.34.030.A.4). In addition, any accessory structure located less than six feet from a primary building shall be considered attached to (and part of) the primary building for purposes of this article.
v.
Additions to primary structures that exceed seven hundred square feet in area may be permitted upon approval of a conditional use permit, which may include a public hearing as provided in Sections 17.82.010 and 17.88.020.
b.
For buildings greater than seven feet in height, the following shall apply:
i.
The maximum height is fifteen feet and one story;
ii.
All required setbacks shall be maintained, unless reviewed and approved by the planning commission (Section 17.34.030.A.4);
iii.
Twelve and one-half feet from the back of sidewalk or edge of right-of-way on corner lots; and
iv.
For each foot in height above ten feet, the required setback, except for the front yard setback, shall be increased by one foot.
c.
For buildings less than or equal to seven feet in height, the following setbacks shall be maintained:
i.
All required setbacks shall be maintained, unless reviewed and approved by the planning commission (Section 17.34.030.A.4).
6.
Fences and Walls. A maximum six-foot high fence (including lattice and similar attachments) or wall, may be located anywhere on a parcel consistent with the following requirements:
a.
The maximum height shall be reduced as follows in each situation listed below:
i.
Within a residential clear vision triangle, the maximum height shall be reduced to thirty-six inches in height (see definition);
ii.
Within a required front setback, the maximum height shall be reduced to four feet in height outside the clear vision triangle; or
iii.
Within five feet of the back of the publicly or privately maintained sidewalk or in the absence of a sidewalk the back of the street or right-of-way of a street-side for a corner lot or within ten feet of the back of the publicly or privately maintained sidewalk, street, or right-of-way of a street-side for a corner lot adjacent to a key lot, the maximum height shall be reduced to four feet in height outside the clear vision triangle.
b.
A fence or wall that is adjacent to an alleyway may be constructed to a maximum height of six feet, including lattice and similar attachments.
c.
When there is a difference in the ground level between two adjoining parcels, the height of any fence or wall constructed along a common property line shall be determined by using the finished grade of the highest contiguous parcel.
d.
The height of a fence or wall may be increased a maximum of two feet to provide for noise attenuation or buffering of adjacent land uses, subject to approval of an administrative permit pursuant to Section 17.82.010.A. Fences and walls in excess of eight feet may be permitted subject to the approval of a conditional use permit.
e.
No fence or wall in a residential district may include security attachments that may cause bodily harm, including but not limited to, barbed wire, razor wire, electrified fencing, or other similar attachments.
f.
The provisions of this section shall not apply to any fence or wall required by any law or regulation of the city or state.
7.
Flag poles. The pole may be maximum of thirty feet in height and shall maintain a minimum of ten-foot setback from any property line. Flagpoles shall be subject to review by the city building inspector who may require the flagpole to be engineered.
8.
Security facilities. Including security gates and gate houses at a project entrance.
9.
Antennas. Including HAM radio, radio and television receiving antennas subject to requirements of Chapter 17.52.
10.
Children's play equipment. Including playsets, playhouses and tree houses.
11.
Recreation facilities. Including recreation activity courts and facilities, swimming pools, spas and hot tubs.
12.
Satellite dishes. Satellite dishes as allowed in Chapter 17.52.
13.
Entry arbors. Entry arbors may be located within the required front yard setback provided they do not cover more than twenty-five square feet in area and do not exceed a height of ten feet.
D.
Permitted Accessory Structures to Dwelling Use Type (Multi-family).
1.
Carports, garages, bicycle lockers, and off-street parking areas.
a.
Carports shall meet the following requirements:
i.
Snow load of eighty pounds per square foot.
ii.
Wind speed of seventy miles per hour.
iii.
Temporary carports may be sited anywhere on the property such that there is no snow shedding onto adjacent property or public right-of-way.
iv.
Applicant shall submit a set of plans to the building department that demonstrates all requirements are met.
2.
Decks. Uncovered decks under thirty inches in height are permitted anywhere on a lot, provided however, that required setbacks are maintained unless reviewed and approved by the planning commission. Any deck of thirty inches or taller, as measured from the pad grade of the lot at the foundation of the dwelling and maintaining a level plane to the highest point of the deck sheathing, shall maintain all required setbacks, unless reviewed and approved by the planning commission (Section 17.34.030.A.4) and shall be located consistent with residential clear vision triangle requirements of Section 17.16.030.B.
3.
Shade structures, including attached or detached shade structures, covered patios, arbors, or gazebos. Such structures are not subject to any site coverage requirements but are subject to the following requirements:
a.
The structure shall not enclose any area equal to or greater than twenty percent on any side not attached to the residence;
b.
The structure shall not be constructed of materials that would create a year round livable area;
c.
The structure shall not exceed fifteen feet in height; and
d.
The structure shall maintain all required setbacks, unless reviewed and approved by the planning commission (Section 17.34.030.A.4).
4.
Fences and Walls. A maximum six-foot high fence (including lattice and similar attachments) or wall, may be located anywhere on a parcel consistent with the following requirements:
a.
The maximum height shall be reduced as follows in each situation listed below:
i.
Within a residential clear vision triangle, the maximum height shall be reduced to thirty-six inches in height (see definition);
ii.
Within a required front setback, the maximum height shall be reduced to four feet in height outside the clear vision triangle; or
iii.
Within five feet of the back of the sidewalk or right-of-way of a street-side for a corner lot or within ten feet of the back of the sidewalk or right-of-way of a street-side for a corner lot adjacent to a key lot, the maximum height shall be reduced to four feet in height outside the clear vision triangle.
b.
A fence or wall that is adjacent to an alley way may be constructed to a maximum height of six feet, including lattice and similar attachments.
c.
When there is a difference in the ground level between two adjoining parcels, the height of any fence or wall constructed along a common property line shall be determined by using the finished grade of the highest contiguous parcel.
d.
The height of a fence or wall may be increased a maximum of two feet to provide for noise attenuation or buffering of adjacent land uses, subject to approval of an administrative permit pursuant to Section 17.82.010.A. Fences and walls in excess of eight feet may be permitted subject to the approval of a conditional use permit.
e.
No fence or wall in a residential district may include security attachments that may cause bodily harm, including but not limited to, barbed wire, razor wire, electrified fencing, or other similar attachments.
f.
The provisions of this section shall not apply to any fence or wall required by any law or regulation of the city or state.
5.
Flag poles. The pole may be maximum of thirty feet in height and shall maintain a minimum of ten-foot setback from any property line and subject to review of city building inspector. Flagpoles shall be subject to review of the city building inspector who may require the flagpole to be engineered.
6.
Security facilities. Including security gates and gate houses at a project entrance.
7.
Antennas. Including HAM radio, radio and television receiving antennas subject to the requirements of Chapter 17.52.
8.
Recreation facilities. Including recreation activity courts and facilities, children's play equipment, swimming pools, spas and hot tubs.
9.
Satellite dishes. Satellite dishes as allowed in Chapter 17.52.
10.
Signs, as permitted by Chapter 17.76 of this code.
11.
Transit facilities.
12.
Trash enclosures and recycling facilities.
E.
Permitted Accessory Structures to Commercial and Industrial Use Types.
1.
Carports, garages, bicycle lockers, and off-street parking areas and structures.
a.
Carports shall meet the following requirements:
i.
Snow load of eighty pounds per square foot.
ii.
Wind speed of seventy miles per hour.
iii.
Temporary carports may be sited anywhere on the property such that there is no snow shedding onto adjacent property or public right-of-way.
iv.
Applicant shall submit a set of plans to the building department that demonstrates all requirements are met.
2.
Shade structures, including arbors and gazebos.
3.
Detached enclosed storage.
4.
Detached unenclosed storage buildings and pole buildings associated with the outdoor display of building materials, nursery stock, or other materials which are typically displayed outdoors or under a canopy.
5.
Fences and walls, except that no fence or wall in excess of thirty-six inches in height may be located within a commercial clear vision triangle (see definition).
6.
Flag poles. The pole may be maximum of thirty feet in height and shall maintain a minimum of ten-foot setback from any property line and city building inspector review. Flagpoles shall be subject to review of the city building inspector who may require the flagpole to be engineered.
7.
Security facilities. Including security gates and gate houses at a project entrance.
8.
Antennas. Including HAM radio, radio and television receiving antennas subject to the requirements of Chapter 17.52.
9.
Recreation facilities. Including recreation activity courts and facilities for use by employees.
10.
Satellite dishes. Satellite dishes as allowed in Chapter 17.52.
11.
Signs, as permitted by Chapter 17.76 of this code.
12.
Transit facilities.
13.
Trash enclosures and recycling facilities.
F.
Prohibited Accessory Structures Within All Use Types.
1.
Fences. The use of security attachments that may cause bodily harm, including but not limited to, barbed wire, razor wire, electrified fencing, or similar attachments in conjunction with any fence, wall, or hedge, or by itself is prohibited, except in the following circumstances:
a.
In a commercial or industrial district, for security purposes, where the security attachments (barbed wire, razor wire, electrified fencing, or similar attachments) are located a minimum of six feet above the ground;
b.
Where required by any permit condition, law or regulation of the city or state.
(Ord. No. 352, § 1, 11-28-2018; Ord. 304 §§ 3, 4, 6, 2003; Ord. 289 § 2 (Exh. A (part)), 2002)
The purpose of these provisions of this chapter is to regulate nonconforming uses, structures and parcels, and to establish conditions under which nonconforming uses, structures and parcels, may be expanded, structurally altered or developed.
(Ord. 289 § 2 (Exh. A (part)), 2002)
A.
Applicability. These regulations shall apply to all nonconforming uses, structures and parcels lawfully constructed or created in compliance with this code and state law.
B.
Nonconforming Use. A nonconforming use may be continued, provided that no such use shall be enlarged or increased, nor extended to occupy a greater area than that which it lawfully occupied before becoming a nonconforming use except as otherwise allowed in this chapter or as follows:
1.
Residential use in a commercial or industrial zone. The nonconforming use of a residential building in a nonresidential district may continue to be used as a residence subject to the residential zone development standards requirements of Section 17.16.030.A (R1 district), until such time as the building is condemned, removed, or converted.
2.
Nonresidential use in a residential zone. No expansion or modification of a nonresidential use in a residential zone shall be permitted.
3.
Expansion of a nonconforming use in a commercial or industrial zone. A nonconforming use, except for a residential use, in a commercial or industrial zone may be expanded or modified provided that a conditional use permit is first secured.
4.
Substitution of nonconforming use. Except as otherwise prohibited in Section 17.37.020.C.2, a nonconforming use may be substituted with a different nonconforming use provided it has the same, or a less intensive, use classification, only upon approval of a conditional use permit. Such a new nonconforming use shall occupy the same area that is occupied by the existing nonconforming use.
C.
Nonconforming Structure. A nonconforming structure may be used and maintained except as otherwise specified in this chapter or as follows:
1.
Residential buildings.
a.
Enlargement, extension, reconstruction, or structural alteration of a building designed as a dwelling, that is nonconforming only as to height and setback regulations is permitted if such additions or improvements conform to all other applicable provisions of this title, and the new construction does not expand the nonconformity.
b.
Enlargement, extension, reconstruction, or structural alteration of a building designed as a dwelling in a nonresidential district is permitted if such additions or improvements conform to all provisions of the district and the new construction does not expand the nonconformity.
2.
Nonresidential buildings.
a.
Enlargement, extension, reconstruction, or structural alteration of a building designed for nonresidential purposes that is nonconforming only as to height and setback regulations is permitted if such additions or improvements conform to all other applicable provisions of this title and the new construction does not expand the nonconformity.
b.
Enlargement, extension, reconstruction, or structural alteration of a building designed for nonresidential purposes in a residential zone is not permitted.
D.
Nonconforming Off-Street Parking. Reconstruction or structural alteration of a building with nonconforming parking or loading facilities, is permitted provided there is no expansion of use requiring additional parking as required by Section 17.40.030. The existing nonconforming parking and loading for the building may remain unchanged.
E.
Damaged and Destroyed Nonconforming Buildings.
1.
Damaged building. A nonconforming building which is damaged by fire or calamity destroying fifty percent or less of its value, as determined by the building inspector, may be reconstructed, provided the structure shall not increase the degree of nonconformity.
2.
Destroyed building.
a.
Building with a nonconforming use. The reconstruction of a building that is damaged by fire or calamity in excess of fifty percent of its value, as determined by the building inspector, which at the time was devoted to a nonconforming use, may obtain a building permit and begin reconstruction within three hundred sixty-five days of the event without the approval of a conditional use permit. If reconstruction has not begun within three hundred sixty-five days of the event, then the nonconforming use may be reconstructed only upon the approval of a conditional use permit. The nonconforming use shall not occupy a larger area of the reconstructed building than was occupied prior to its destruction. No portion of the building, as reconstructed, shall be located within the floodplain overlay zone.
b.
Nonconforming building. The reconstruction of a building that is damaged by fire or calamity in excess of fifty percent of its value, as determined by the building inspector, which at the time was a nonconforming building, may be reconstructed only upon approval of a variance. The nonconforming building may be enlarged provided that any enlargement does not increase the nonconformity. The reconstruction of the building shall occur within twelve months after the date of damage. No portion of the building as reconstructed, shall be located within the floodplain overlay zone.
F.
Loss of Nonconforming Status. Except as provided in Section 17.37.020(B)(1) of this chapter or where a shorter time period is specified by this title, a nonconforming use of a parcel or a nonconforming use of a conforming building which is discontinued for a period of six months shall be deemed abandoned. Without further action by the city, further use of the parcel or structure shall comply with all the regulations of the zone district in which the parcel or structure is located, and all other applicable provisions of this title.
(Ord. 310 § 1, 2005; Ord. 289 § 2 (Exh. A (part)), 2002)
A parcel that does not comply with the minimum requirement of this title for the zone district in which it is located, may be used as a building site if it complies with the criteria specified below. It shall be the responsibility of the applicant to produce sufficient evidence to establish the following:
A.
Approved Subdivision. The parcel was created as part of a subdivision approved by the planning commission or city council pursuant to a duly adopted ordinance of the City of Portola and in compliance with the Subdivision Map Act (Government Code Section 66410 et seq.).
(Ord. 289 § 2 (Exh. A (part)), 2002)
The requirements for off-street parking established by this chapter are intended (1) to minimize traffic congestion and hazards to motorists and pedestrians, (2) to provide safe, attractive, and convenient off-street parking facilities with vehicular access to all land uses, (3) to provide off-street parking in proportion to the needs generated by varying land uses, (4) to ensure access to projects by emergency response vehicles, and (5) to ensure that parking areas are compatible with the surrounding land uses.
(Ord. 289 § 2 (Exh. A (part)), 2002)
All approved land uses shall be designed and developed to provide the number of off-street parking spaces required by Section 17.40.030 (Parking Space Requirements by Use Type), and designed as required by Section 17.40.040 (Design and Improvement of Parking).
A.
Handicapped Accessible Parking. Parking lots shall include the number of handicapped accessible parking spaces as required by Title 24 of the California Code of Regulations. Handicapped accessible spaces count toward the total number of parking spaces required by Section 17.40.030. Handicapped parking spaces shall be designed as provided in Section 17.40.040(A)(1)(a).
B.
Company Vehicles. In addition to the number of off-street parking spaces required by Section 17.40.030 (Parking Space Requirements by Use Type), non-residential uses shall provide one off-street parking space for each company vehicle that is parked on the site during normal business hours. These spaces may be located within a building.
C.
Bicycle Spaces. A minimum of one bicycle space shall be provided for each twenty required parking spaces up to one hundred spaces. For each additional one hundred required parking spaces or portion thereof, one bicycle space shall be provided or another minimum number of bicycle spaces as determined by the planning commission. Any bicycle space required as part of the transportation system management plan can be counted to fulfill the requirements of this section.
D.
Accessibility and Usability. All required off-street parking spaces shall be designed, located, constructed and maintained so as to be fully and independently usable and accessible at all times. The usability of required parking spaces shall be maintained as follows:
1.
Required off-street parking spaces shall not be used for any purpose that at any time would prevent vehicles from parking in required parking spaces, except as permitted by Chapter 17.73 (Temporary Uses).
2.
Driveways shall not be used for any purpose that would prevent vehicle access to parking spaces, or inhibit circulation or emergency service response.
3.
All required parking spaces must be available for use by tenants, customers and visitors to the site at all times. Parking spaces shall not be reserved for an individual tenant or customer, or be reserved for a limited period of time.
(Ord. 289 § 2 (Exh. A (part)), 2002)
The number of off-street parking spaces required for the land uses identified by Article II (Zoning Districts and Permitted Uses) shall be as provided by this section, except where parking requirements are established by Article IV (Special Area and Specific Use Requirements) for a particular use.
A.
Number of spaces required. The number of off-street parking spaces required for new uses shall be based upon the use type, listed below, except as may be modified by subsections C or D of this section.
1.
Terms used in tables. The following terms are used throughout the tables and are defined below:
a.
"Square feet" means the total gross building/tenant space area;
b.
"Use area" means the total of gross building/tenant space area plus the gross area of any outdoor/storage/activity.
2.
Civic Use Types shall provide off-street parking spaces as follows:
3.
Residential use types shall provide off-street parking spaces as follows:
4.
Commercial use types shall provide off-street parking spaces as follows, but no fewer than two spaces for each separate commercial use or tenant:
5.
Industrial use types shall provide off-street parking spaces as follows, but no fewer than two spaces for each separate industrial use or tenant:
6.
Transportation and communication use types shall provide off-street parking spaces as follows:
B.
Special Parking Requirements. The number of parking spaces required for uses not specifically listed in subsection A shall be determined by the director based on common functional, product or compatibility characteristics and activities, as provided for in Section 17.13.050
1.
New buildings or development projects without known tenants. If the type of tenants that will occupy a nonresidential building are not known at the time of the development entitlement or building permit approval, the amount of parking to be provided shall be the minimum number of parking spaces required by subsection A for any land use allowed on the site by the applicable zoning, provided that the director determines the proposed building as designed can reasonably accommodate such use.
2.
Mixed-use projects. Where a project contains more than one major use classification (such as a residential and a commercial use), the amount of parking to be provided shall be the total of that required for each use, except as otherwise provided by subsection C below.
3.
Tenant spaces with multiple functions. When a tenant has several functions, such as sales and office, the amount of parking to be provided for the tenant shall be calculated as specified by subsection A for the primary use, using the gross floor area of the tenant space.
4.
Changes in use. When an existing use is enlarged, increased or intensified, or a new use having greater parking requirements than the previous use is proposed, the required number of parking spaces for the new use or existing, enlarged, increased or intensified use shall be calculated as specified by subsection A.
5.
Rounding off. When the required number of parking spaces is other than a whole number, the total number of spaces shall be rounded up to the nearest whole number.
C.
Adjustment to Number of Required Parking Spaces. The number of parking spaces required by subsection A, above, may be modified as follows:
1.
Precise plan provisions. Provisions may be made in a precise plan to allow reductions in the number of required parking spaces based upon special provisions, such as providing golf cart or electric car parking where special provisions are made for golf carts or electric cars.
2.
Parking reductions for shared parking. If an applicant believes the number of parking spaces required for their building complex as specified in subsection A (which is the sum of all the users within the building complex) is not applicable because the hours of operation of different tenants/uses within the building complex will effectively allow for dual use of the parking spaces then the applicant may request an administrative permit. The approving authority shall be the director. If the director finds that the hours of operation of different tenants/uses within the building complex will in fact allow for dual use of the parking spaces, then the director shall issue an administrative permit. The applicant shall have the burden of proof for requesting a reduction in the total number of required off-street parking spaces, and documentation shall be submitted substantiating this request. Shared parking reductions shall only be approved by the approving authority if:
a.
A sufficient number of spaces are provided to meet the greatest parking demand of the participating uses;
b.
Satisfactory evidence is provided describing the nature of the uses and the times when the uses operate so as to demonstrate the lack of potential conflict between them;
c.
Overflow parking will not impact any adjacent use; and
d.
Additional documents, covenants, deed restrictions, or other agreements as may be deemed necessary by the director are executed to assure that the required parking spaces provided are maintained and uses with similar hours and parking requirements as those uses sharing the parking facilities remain for the life of the project.
3.
Parking reductions for an individual use. If an applicant for a proposed use believes the number of parking spaces required for their use as specified in subsection A is not applicable because their use functions differently than the generic use type and associated parking standards established in this title, then the applicant may request an administrative permit. The approving authority shall be the director. If the director finds that the use functions differently than the generic use type and associated parking standards established in this title, due to the specific nature of the business in question, then the director shall issue an administrative permit. The applicant shall have the burden of proof for requesting a reduction in the total number of required off-street parking spaces, and documentation shall be submitted substantiating the request. Such documentation may include, but is not limited to: a parking study of another facility of the same use which is similar in size and operation, calculating the required parking spaces with field data of peak parking usage. Reduced parking shall only be approved by the approving authority if:
a.
Satisfactory evidence is provided describing the nature of the use, the operation and data from other facilities or similar facilities so as to demonstrate that the required parking standards are excessive and the proposed parking standards are appropriate; and
b.
Overflow parking will not impact any adjacent use.
D.
Downtown Core and Old Town Overlay Areas—Parking Requirements. All principally permitted uses in historic areas of the city (downtown core and old town overlay areas), with the exception of community assembly, colleges and universities, and new uses requiring a discretionary permit, shall be permitted without the need to provide additional off-street parking.
Community assembly, college and university uses, and new uses which require a discretionary permit, shall comply with the parking standards specified in Section 17.40.030(A), or request approval of a parking reduction or variance from the parking standards from the planning commission.
Downtown core and old town overlay areas may be required to participate in any approved assessment district to alleviate parking constraints, unless adequate off-street parking is provided as required in this title.
(Ord. 289 § 2 (Exh. A (part)), 2002)
Parking spaces and areas shall be designed in accordance with this section.
A.
Parking Lot and Parking Space Design and Layout. Except where otherwise provided by Section 17.40.030(C) parking spaces shall be designed as follows:
1.
Parking space design. Except as provided below, all parking spaces shall be standard spaces, designed to accommodate full-size passenger vehicles.
a.
Parking space sizes. Standard spaces shall be a minimum of nine feet by eighteen feet; compact car spaces shall be a minimum of eight feet by sixteen feet; and parallel parking spaces shall be a minimum of ten feet wide by twenty-two feet long. Handicapped spaces shall be a minimum of nine feet by eighteen with a five foot loading area; a handicapped van space shall be a minimum of nine feet by eighteen feet with an eight foot loading area, or as otherwise required by state law.
b.
Compact car space substitution. Parking lots with a minimum of twenty parking spaces may substitute standard spaces with compact spaces for up to thirty percent of the total parking spaces required. Each compact space shall be labeled "COMPACT" or "C".
c.
Motorcycle space substitution. Parking lots with a minimum of forty parking spaces may substitute standard parking spaces with motorcycle spaces. One standard parking space may be replaced with a motorcycle space for each forty required standard parking spaces. Motorcycle spaces shall be a minimum size of three by six feet.
2.
Parking lot design. The design and layout of parking lots shall conform to the following standards:
a.
Circulation aisle width with parking. The minimum width of a two-way drive aisle providing access to parking spaces shall be twenty-four feet. The minimum width of a one-way drive aisle providing access to parking spaces shall be as follows:
Other parking designs utilizing other parking angles may be permitted upon approval of the planning commission.
b.
Circulation aisle width without parking. The minimum width of a two-way drive aisle with no parking on either side of the drive aisle is twenty feet. The minimum width of a one-way drive aisle with no parking on either side of the drive aisle is twelve feet.
c.
Circulation aisle for emergency access. The minimum width of a drive aisle needed for an emergency response vehicle shall be twenty feet.
d.
Vehicular overhang: Vehicular overhang is permitted, provided no vehicle shall overhang into a sidewalk that would reduce the unencumbered width of a sidewalk to less than four feet. A vehicle is permitted to overhang into a landscaped area by two feet, provided that the required landscaped area is extended by two feet.
e.
Perimeter landscaping. Where a parking lot is adjacent to a public right-of-way, a landscape planter shall be established and continuously maintained between the public right-of-way and the parking lot. The director shall review and approve the landscape plan. In addition, all unused right-of-way between the public street and the parking lot shall be landscaped and maintained by the property owner.
f.
Bicycle racks. When bicycle spaces are provided, a bicycle rack shall be installed. The bicycle rack shall be designed to allow a bicycle to be secured to the rack. The location of the bicycle rack shall not encroach into the sidewalk that would reduce the unencumbered width of the sidewalk to less than four feet or prohibit the free movement of pedestrian traffic.
g.
Curb stops. A permanent curb, bumper, wheel stop or similar device at least six inches in height shall be installed adjacent to sidewalks, planters and other landscaping areas, parking lot fixtures and buildings and walls to protect these improvements from vehicular damage. The stopping edge of such protected devices shall be placed no closer than two feet from the above noted improvement.
h.
Parking space design. When possible, all parking spaces shall be delineated and separated by striping, as shown on the typical stall illustration below. The striping shall be maintained in a clear and visible manner.
B.
Controlled Access Required. All parking spaces (including garage spaces) required for any land use other than a single-family or two-family dwelling shall be designed and located to provide for vehicle maneuvering on the site so that vehicles will enter any adjacent public right-of-way or private road in a forward direction.
C.
Location of Parking on a Single-Family Residential Lot. Parking spaces may be located as needed on a site, provided that no required parking space or aisle other than a driveway providing access to a street shall be located within a front or street side setback required by Article II except as provided in Section 17.70.040.G (Second Units), or other use types according to Section 17.40.030.
D.
Surfacing of Parking Areas. Required parking and circulation areas shall be surfaced with asphalt concrete or Portland cement concrete, or other approved all-weather, hard, non-eroding surface. It shall be the responsibility of the property owner to insure that the surface is maintained free from significant cracks or holes.
E.
Drive-Through Facilities. The following requirements apply to any use with drive-through facilities:
1.
Separation and Marking of Lanes. Drive-through aisles shall be a minimum of twelve feet wide and shall be separated from other circulation aisles necessary for ingress or egress, or aisles providing access to any parking space. Each such aisle shall be striped, marked, or otherwise distinctly delineated.
F.
Loading Requirements. Loading shall be provided as identified below:
1.
No maneuvering within public rights-of-way. All site designs shall be designed so as to prevent truck back-up maneuvering within the public right-of-way.
2.
Design. The location, number, size and access of the loading area shall be determined pursuant to design review.
(Ord. 289 § 2 (Exh. A (part)), 2002)
The regulations set forth in this chapter apply in Medium Density Residential (MDR), High Density Residential (HDR), and Commercial Mixed Use (CMU) zoning districts.
(Ord. No. 352, § 1, 11-28-2018)
In accordance with Cal. Gov't Code §§ 65915, 65915.5, 65915.7, and 65917, this chapter is intended to provide incentives for the production of housing for very low income, lower income, and senior households and for the production of housing for moderate income households residing in condominium and planned development projects. In enacting this chapter, it is also the intent of the City of Portola to facilitate the development of affordable housing and to implement the goals, objectives, and policies of the city's housing element.
(Ord. No. 352, § 1, 11-28-2018)
A.
Subject to the findings included in Section 17.43.110, the city shall grant a twenty percent density bonus to a developer of a housing development who seeks a density bonus and agrees to construct at least one of the following and any additional replacement housing units required by subsection D of this section:
1.
Ten percent of the total units of the housing development as target units affordable to lower income households; or
2.
Five percent of the total units of the housing development as target units affordable to very low income households; or
3.
A senior citizen housing development. The density bonus for a senior citizen housing development is limited to twenty percent of the number of senior housing units.
B.
Subject to the findings included in Section 17.43.110, the city shall grant a five percent density bonus to a developer of a housing development who seeks a density bonus and agrees to provide all of the following and any additional replacement housing units required by subsection D of this section:
1.
Ten percent of the total units in the housing development as target units for sale to moderate income households at an affordable sales price; and
2.
The housing development is a common interest development; and
3.
All of the dwelling units in the housing development are offered to the public for sale.
C.
Subject to the findings included in Section 17.43.110, the city shall grant a density bonus of 20 percent of the type of units listed in subsection C.1 of this section to a developer of a housing development who seeks a density bonus and agrees to provide all of the following and any additional replacement housing units required by subsection D of this section:
1.
Ten percent of the total units in the housing development for transitional foster youth, as defined in Cal. Educ. Code § 66025.9; disabled veterans, as defined in Cal. Gov't Code § 18541; or homeless persons, as defined in the federal McKinney-Vento Homeless Assistance Act (42 U.S.C. 11301 et seq.); and
2.
The units described in subsection C.1 of this section are subject to a recorded restriction requiring that the units remain affordable to very low income households for fifty-five years.
D.
Replacement housing shall be provided on a site which meets both of the following conditions:
1.
Rental housing is now located or was located on the site at any time in the five-year period preceding the date of submittal of the density bonus application; and
2.
The rental housing is or was, during that five-year period:
a.
Subject to a recorded covenant, ordinance, or law restricting rents to levels affordable to very low and lower income households;
b.
Subject to any form of public rent or price control; or
c.
Occupied by very low or lower income households.
A housing development subject to this subsection D is not eligible for a density bonus, incentive, concession, waiver, or modified parking provided by this chapter unless the proposed housing development contains one of the following, whichever results in a greater number of affordable units:
i.
The percentage of target units specified in subsections A, B, or C of this section; or
ii.
The replacement affordable units specified in Cal. Gov't Code §§ 65915(c)(3)(B) and (C).
E.
The density bonus for which the housing development is eligible shall increase if the percentage of very low income, lower income, or moderate income target units is increased, as follows:
1.
For each one percent increase above ten percent in the percentage of units affordable to lower income households, the density bonus shall be increased by one and one-half percent up to a maximum of thirty-five percent.
2.
For each one percent increase above five percent in the percentage of units affordable to very low income households, the density bonus shall be increased by two and one-half percent up to a maximum of thirty-five percent.
3.
For each one percent increase above ten percent of the percentage of units affordable to moderate income households, the density bonus shall be increased by one percent up to a maximum of thirty-five percent.
When calculating the maximum residential density and the number of permitted density bonus units, any calculations resulting in fractional units shall be rounded to the next larger integer.
F.
The density bonus units shall not be included when determining the number of target units required to qualify for a density bonus. When calculating the required number of target units, any calculations resulting in fractional units shall be rounded to the next larger integer.
G.
The developer may request a lesser density bonus than the project is entitled to, but no reduction will be permitted in the number of required target units pursuant to subsections A through D of this section. Regardless of the number of target units, no housing development may be entitled to a density bonus of more than thirty-five percent.
H.
Each housing development is entitled to only one density bonus, which may be selected based on the percentage of either very low income target units, lower income target units, or moderate income target units, the project's status as a senior citizen housing development, or the project's provision of housing for transitional foster youth, disabled veterans, or homeless persons. Density bonuses from more than one category may not be combined.
I.
Subject to the findings included in Section 17.43.110, when a developer seeks a density bonus, the city shall grant incentives or concessions listed in Section 17.43.100 as follows:
1.
One incentive or concession for projects that include at least ten percent of the total units for lower income households, at least five percent for very low income households, or at least ten percent for persons and families of moderate income in a common interest development.
2.
Two incentives or concessions for projects that include at least twenty percent of the total units for lower income households, at least ten percent for very low income households, or at least twenty percent for persons and families of moderate income in a common interest development.
3.
Three incentives or concessions for projects that include at least thirty percent of the total units for lower income households, at least fifteen percent for very low income households, or at least thirty percent for persons and families of moderate income in a common interest development.
J.
In accordance with state law, neither the granting of a concession or incentive nor the granting of a density bonus shall be interpreted, in and of itself, to require a general plan amendment, zoning change, or other discretionary approval.
K.
The following tables summarize this information:
Density Bonus Summary Table
Incentives/Concessions Summary Table
(Ord. No. 352, § 1, 11-28-2018)
A.
When a developer of a housing development donates land to the city as provided in this section and meets the requirements of Section 17.43.030.D, the developer shall be entitled to a fifteen percent increase above the otherwise allowable maximum residential density for the housing development. For each one percent increase above the minimum ten percent land donation described in subsection B.2 of this section, the density bonus shall be increased by one percent, up to a maximum of thirty-five percent. This increase shall be in addition to any increase in density allowed by Section 17.43.030, up to a maximum combined density bonus of thirty-five percent if a developer seeks both the increase required pursuant to this section and Section 17.43.030. When calculating the allowable maximum residential density and the number of permitted density bonus units, any calculations resulting in fractional units shall be rounded to the next larger integer.
B.
A housing development shall be eligible for the density bonus described in this section if the city makes all of the following findings:
1.
The developer will donate and transfer the land no later than the date of approval of the final subdivision map, parcel map, application for the housing development, or first building permit, if no map is required.
2.
The developable acreage and zoning classification of the land being transferred are sufficient to permit construction of units affordable to very low income households in an amount equal to at least ten percent of the number of residential units of the proposed development, or will permit construction of a greater percentage of units if proposed by the developer.
3.
The transferred land is at least one acre in size or of sufficient size to permit development of at least forty units, has the appropriate general plan designation, is zoned with appropriate standards to allow development at a density of at least thirty units per acre, and is now or at the time of construction will be served by adequate public facilities and infrastructure. No later than the date of approval of the final subdivision map, parcel map, application for the housing development, or first building permit, if no map is required, the transferred land will have all of the permits and approvals, other than building permits, necessary for the development of the very low income housing units on the transferred land.
4.
The transferred land and the very low income units constructed on the land will be subject to a deed restriction ensuring continued affordability of the units consistent with this chapter, which restriction will be recorded on the property at the time of transfer.
5.
The land will be transferred to the city, other public agency, or to a housing developer approved by the city. The city reserves the right to require the developer to identify a developer of the very low income units and to require that the land be transferred to that developer.
6.
The transferred land is within the boundary of the proposed housing development. The transferred land may be located within one-quarter mile of the boundary of the proposed housing development; provided, that the city additionally makes all of the findings included in Section 17.43.040.B.
7.
A proposed source of funding for the very low income units shall be identified no later than the date of approval of the final map, parcel map, application for the housing development, or first building permit, if no map is required.
(Ord. No. 352, § 1, 11-28-2018)
A.
When a developer proposes to construct a commercial development and has entered into a partnered housing agreement approved by the city, the city shall grant a commercial development bonus mutually agreed upon by the developer and the city. The commercial development bonus shall not include a reduction or waiver of fees imposed on the commercial development to provide for affordable housing.
B.
The partnered housing agreement shall include all of the following provisions:
1.
The housing development shall be located either on the site of the commercial development or on a site within the city that is within one-half mile of a major transit stop and is located in close proximity to public amenities, including schools and employment centers.
2.
At least thirty percent of the total units in the housing development shall be made available at affordable ownership cost or affordable rent for low-income households, or at least fifteen percent of the total units in the housing development shall be made available at affordable ownership cost or affordable rent for very low income households.
3.
The commercial developer must agree either to directly build the target units; donate a site consistent with subsection B.1 of this section for the target units; or make a cash payment to the housing developer for the target units.
C.
Any approved partnered housing agreement shall be described in the city's housing element annual report as required by Cal. Gov't Code § 65915.7(k).
(Ord. No. 352, § 1, 11-28-2018)
A.
When a developer proposes to construct a housing development that includes target units as specified in Sections 17.43.020.A through D and includes a child care facility that will be located on the premises of, as part of, or adjacent to the housing development, the city shall grant either of the following if requested by the developer:
1.
An additional density bonus that is an amount of square feet of residential space that is equal to or greater than the amount of square feet in the child care facility.
2.
An additional concession or incentive that contributes significantly to the economic feasibility of the construction of the child care facility.
B.
A housing development shall be eligible for the density bonus or concession described in this section if the city makes all of the following findings:
1.
The child care facility will remain in operation for a period of time that is as long as or longer than the period of time during which the target units are required to remain affordable pursuant to Section 17.43.080.
2.
Of the children who attend the child care facility, the percentage of children of very low income households, lower income households, or moderate income households shall be equal to or greater than the percentage of dwelling units that are proposed to be affordable to very low income households, lower income households, or moderate income households.
3.
Notwithstanding any requirement of this section, the city shall not be required to provide a density bonus or concession for a child care facility if it finds, based upon substantial evidence, that the community already has adequate child care facilities.
(Ord. No. 352, § 1, 11-28-2018)
A.
The city shall grant either a density bonus or other incentives of equivalent financial value if the applicant for a condominium conversion agrees to provide thirty-three percent of the total units of the proposed condominium project as target units affordable to lower or moderate income households, or to provide fifteen percent of the total units in the condominium conversion project as target units affordable to lower income households, and to provide any replacement affordable units required by Section 17.43.030.D. All such target units shall remain affordable for the period specified in Section 17.43.080.B.
B.
For purposes of this section, a "density bonus" means an increase in units of twenty-five percent over the number of apartments to be provided within the existing structure or structures proposed for conversion. "Other incentives of equivalent financial value" shall not be construed to require the city to provide a cash transfer payment or other monetary compensation of any type but may include, at the city's discretion, modification of requirements that the city might otherwise apply as conditions of approval.
C.
No condominium conversion shall be eligible for a density bonus if the apartments proposed for conversion constitute a housing development for which a density bonus or other incentives were previously provided pursuant to this chapter or Cal. Gov't Code § 65915.
D.
Nothing in this section shall be construed to require the city to approve a condominium conversion.
(Ord. No. 352, § 1, 11-28-2018)
A.
Target units shall be constructed concurrently with market-rate units or pursuant to a schedule included in the density bonus housing agreement. No temporary or permanent certificate of occupancy for any new market-rate unit in a housing development or for commercial space in a commercial development shall be issued until permanent certificates of occupancy have been issued for the required target units unless explicitly permitted by the density bonus housing agreement or partnered housing agreement.
B.
Target units offered for rent to lower income and very low income households shall be made available for rent at an affordable rent. Target units offered for sale to very low, lower, or moderate income households shall be sold at an affordable ownership cost. All target units offered for rent shall remain restricted and affordable to the designated income group for a minimum period of fifty-five years. All target units offered for sale shall remain restricted and affordable to the designated income group for a minimum period of thirty years. A longer period of time may be specified if required by any construction or mortgage financing assistance program, mortgage insurance program, or rental subsidy program applicable to the housing development.
C.
Provisions for the continued affordability of target units shall be consistent with those specified in Section 17.43.080.
D.
Target units shall be built on-site, unless off-site construction is approved pursuant to Section 17.43.040 or 17.43.050, and shall be dispersed within the housing development. The number of bedrooms of the target units shall be equivalent to the bedroom mix of the market-rate units in the housing development, except that the developer may include a higher proportion of target units with more bedrooms. The design and appearance of the target units shall be compatible with the design of the total housing development. Housing developments and commercial developments shall comply with all applicable development standards, except those which may be modified as provided by this chapter.
(Ord. No. 352, § 1, 11-28-2018)
A.
If a housing development is eligible for a density bonus, upon the request of the developer, the city shall not require a vehicular parking ratio, inclusive of handicapped and guest parking, that exceeds the following ratios:
1.
Zero to one bedroom: one on-site parking space.
2.
Two to three bedrooms: two on-site parking spaces.
3.
Four and more bedrooms: two and one-half parking spaces.
B.
For certain other housing developments that are eligible for a density bonus, upon the request of the developer, the city shall not require a vehicular parking ratio, inclusive of handicapped and guest parking, that exceeds the ratios shown in the following table. However, if the city, at its cost, has conducted an area-wide or city-wide parking study in the last seven years, then the city may find, based on substantial evidence, that a higher parking ratio is required than shown in the following table. In no event may the required parking be greater than the ratio provided in subsection A of this section. The parking study must conform to the requirements of Cal. Gov't Code § 65915(p)(7).
C.
If the total number of parking spaces required for a development by this section is other than a whole number, the number shall be rounded up to the next whole number. For purposes of this section, a development may provide "on-site parking" through tandem parking or uncovered parking, but not through on-street parking.
(Ord. No. 352, § 1, 11-28-2018)
A.
Incentives or concessions that may be requested pursuant to Sections 17.43.030.I and 17.43.060.A, may include the following:
1.
A reduction of site development standards or a modification of zoning code requirements or architectural design requirements which exceed the minimum building standards provided in Cal. Health and Safety Code Division 13, Part 2.5 (commencing with § 18901) and which result in identifiable and actual cost reductions to provide for affordable ownership costs or affordable rents, including, but not limited to:
a.
Reduced minimum lot size and/or dimension.
b.
Reduced minimum lot setback.
c.
Reduced minimum outdoor and/or private outdoor living area.
d.
Increased maximum lot coverage.
e.
Increased maximum building height and/or stories.
f.
Reduced minimum building separation requirement.
g.
Reduced street standard, such as reduced minimum street width.
2.
Approval of mixed-use development in conjunction with the housing development if nonresidential land uses will reduce the cost of the housing development and if the city finds that the proposed nonresidential uses are compatible with the housing development and with existing or planned development in the area where the proposed housing development will be located.
3.
Incentives for affordable units listed in Section 17.43.040.A.
4.
Modifications of those development standards included in Section 17.43.080.D.
5.
Deferred development impact fees (e.g., capital facilities, park land in lieu, park facilities, fire, or traffic impact fees).
6.
Other regulatory incentives or concessions proposed by the developer or the city which result in identifiable and actual cost reductions to provide for affordable ownership costs or affordable rents.
B.
Developers may seek a waiver or modification of any development standard that will physically preclude the construction of a housing development meeting the criteria of Sections 17.43.030.A through D at the density or with the concessions or incentives permitted by this chapter. The applicant shall bear the burden of demonstrating that the development standards that are requested to be waived will have the effect of physically precluding the construction of the housing development with the density bonus and incentives.
C.
Nothing in this section requires the provision of direct financial incentives for the housing development, including but not limited to the provision of financial subsidies, publicly owned land, fee waivers, or waiver of dedication requirements. The city, at its sole discretion, may choose to provide such direct financial incentives.
(Ord. No. 352, § 1, 11-28-2018)
A.
An application for a density bonus, incentive, concession, waiver, modification, modified parking standard, or commercial development bonus pursuant to this chapter shall be submitted with the first application for approval of a housing development or commercial development and processed concurrently with all other applications required for the housing development or commercial development. An applicant shall be informed whether the application is complete consistent with Cal. Gov't Code § 65943. The application shall be submitted on a form prescribed by the city and shall include at least the following information:
1.
Site plan showing total number of units, number and location of target units, and number and location of proposed density bonus units.
2.
Summary table showing the maximum number of units permitted by the zoning and general plan excluding any density bonus units, proposed target units by income level, proposed bonus percentage, number of bonus units proposed, and total number of dwelling units proposed on the site.
3.
Tenure (rental versus for-sale) of target units and proposals for ensuring affordability.
4.
A description of all dwelling units existing on the site in the five-year period preceding the date of submittal of the application and identification of any units rented in the five-year period. If dwelling units on the site are currently rented, income and household size, if known, of all residents of currently occupied units. If any dwelling units on the site were rented in the five-year period but are not currently rented, the income and household size, if known, of residents occupying dwelling units when the site contained the maximum number of dwelling units.
5.
Description of any recorded covenant, ordinance, or law applicable to the site that restricted rents to levels affordable to very low or lower income households in the five-year period preceding the date of submittal of the application.
6.
Description of any requested incentives, concessions, waivers or modifications of development standards, or modified parking standards.
7.
For all incentives and concessions except mixed-use development, to establish eligibility for the requested incentives and concessions, the application shall include evidence that the requested incentives and concessions result in identifiable and actual cost reductions, including the actual cost reduction achieved through the incentive, and evidence that the cost reduction allows the applicant to provide affordable rents or affordable ownership costs.
8.
If a mixed-use building or project is proposed as an incentive, the applicant shall provide evidence that nonresidential land uses will reduce the cost of the residential project, and that the nonresidential land uses are compatible with the residential project and the existing or planned surrounding development.
9.
For waivers or modifications of development standards, the application shall provide evidence that the development standard for which the waiver is requested will have the effect of physically precluding the construction of the housing development with the density bonus and incentives requested.
10.
If a parking reduction is requested, a table showing parking required by the zoning ordinance and proposed parking. If a parking reduction provided by Section 17.43.090.B is requested, evidence that the project is eligible for the requested parking reduction.
11.
If a density bonus or concession is requested for a land donation, the application shall show the location of the land to be dedicated and provide evidence that each of the findings included in Section 17.43.040.B can be made.
12.
If a commercial development bonus is requested for a commercial development, the application shall include the proposed partnered housing agreement, the proposed commercial development bonus, and evidence that each of the standards included in Section 17.43.050.B has been met.
13.
If a density bonus or concession is requested for a child care facility, the application shall show the location and square footage of the child care facilities and provide evidence that each of the findings included in Section 17.43.060.B can be made.
14.
If a density bonus or incentive is requested for a condominium conversion, the application shall provide evidence that all of the requirements found in Section 17.43.070 can be met.
B.
An application for a density bonus, incentive, concession, waiver, modification, modified parking standard, or commercial development bonus for a housing development or a commercial development pursuant to this chapter shall be considered by and acted upon by the approval body with authority to approve the housing development or commercial development within the timelines prescribed by Cal. Gov't Code §§ 65950 et seq. Any decision regarding a density bonus, incentive, concession, waiver, modification, modified parking standard or commercial density bonus may be appealed to the planning commission and from the planning commission to the city council. In accordance with state law, neither the granting of a concession or incentive, nor the granting of a density bonus, shall be interpreted, in and of itself, to require a general plan amendment, zoning change, variance, or other discretionary approval.
C.
Before approving an application for a density bonus, incentive, concession, waiver, modification, or commercial development bonus, the approval body shall make the following findings, as applicable:
1.
A finding that the housing development is eligible for the density bonus and any incentives, modified parking, or waivers requested and includes any replacement affordable units required by Section 17.43.030.D.
2.
A finding that any requested incentive will result in identifiable and actual cost reductions to provide for affordable rents or affordable ownership costs based upon the documentation provided by the applicant.
3.
If the density bonus is based all or in part on donation of land, the findings included in Section 17.43.040.B.
4.
If the density bonus, incentive, or concession is based all or in part on the inclusion of a child care facility, the findings included in Section 17.43.060.B.
5.
If the incentive or concession includes mixed-use development, the findings included in Section 17.43.100.A.2.
6.
If a waiver or modification is requested, a finding that the development standards for which the waiver is requested would have the effect of physically precluding the construction of the housing development with the density bonus and incentives permitted.
7.
If the density bonus, incentive, or concession is based all or in part on a condominium conversion, a finding that the project complies with the requirements of Section 17.43.070.
8.
If a commercial development bonus is requested, a finding that the project complies with the requirements of Section 17.43.050, that the city has approved the partnered housing agreement, and that the bonus has been mutually agreed upon by the city and the commercial developer.
D.
If a request for a concession or incentive is otherwise consistent with this chapter, the approval body may deny a concession or incentive only if it makes a written finding, based upon substantial evidence, of one of the following:
1.
The concession or incentive does not result in identifiable and actual cost reductions to provide for affordable rents or affordable ownership costs.
2.
The concession or incentive would have a specific adverse impact upon public health or safety or the physical environment or on any real property that is listed in the California Register of Historical Resources, and there is no feasible method to satisfactorily mitigate or avoid the specific adverse impact without rendering the development unaffordable to lower and moderate income households.
3.
The concession or incentive is contrary to state or federal law.
E.
If a request for a waiver or modification is otherwise consistent with this chapter, the approval body may deny a waiver or modification only if it makes a written finding, based upon substantial evidence, of one of the following:
1.
The waiver or modification would have a specific adverse impact upon health, safety, or the physical environment, and there is no feasible method to satisfactorily mitigate or avoid the specific adverse impact without rendering the development unaffordable to lower and moderate income households.
2.
The waiver or modification would have an adverse impact on any real property that is listed in the California Register of Historical Resources.
3.
The waiver or modification is contrary to state or federal law, which may include a finding that the development standards for which the waiver is requested would not have the effect of physically precluding the construction of the housing development with the density bonus and incentives permitted.
F.
If a density bonus or concession is based on the provision of child care facilities, the approval body may deny the bonus or concession if it finds, based on substantial evidence, that the city already has adequate child care facilities.
(Ord. No. 352, § 1, 11-28-2018)
A.
If any density bonus, incentive, concession, waiver, modified parking, or commercial development bonus is approved pursuant to this chapter for a housing development, a density bonus housing agreement shall be made a condition of the discretionary planning permits. The density bonus housing agreement shall be a legally binding agreement between the applicant and the city to ensure that the requirements of this chapter are satisfied and shall be binding on all future owners and successors in interest. The density bonus housing agreement may be combined with the affordable housing agreement and other documents required by Chapter 17.43. The executed density bonus housing agreement shall be approved by the city attorney and shall be recorded against the housing development or the commercial development, as applicable, prior to final or parcel map approval, or, where a map is not being processed, prior to issuance of any building permit for the housing development or commercial development.
B.
The density bonus housing agreement for a housing development or commercial development shall include, but not be limited to the following:
1.
The total number of units approved for the housing development, the number, location, and level of affordability of target units, and the number of density bonus units.
2.
Standards for determining affordable rent or affordable ownership cost for the target units.
3.
The location, unit size in square feet, and number of bedrooms of target units.
4.
Provisions to ensure affordability in accordance with Sections 17.43.080.B and C.
5.
A schedule for completion and occupancy of target units in relation to construction of market-rate units or construction of the commercial development, as applicable.
6.
A description of any incentives, concessions, waivers, reductions, modified parking, or commercial development bonus being provided by the city.
7.
A description of remedies for breach of the agreement by either party. The city may identify tenants or qualified purchasers as third party beneficiaries under the agreement.
8.
Procedures for qualifying tenants and prospective purchasers of target units.
9.
Financing of ongoing administrative and monitoring costs.
10.
Other provisions to ensure implementation and compliance with this chapter.
C.
In the case of for-sale housing developments, the density bonus housing agreement shall include the following conditions governing the sale and use of target units during the applicable use restriction period:
1.
Target units shall be owner-occupied by eligible very low, lower, or moderate income households, or by qualified residents in the case of senior citizen housing developments.
2.
The purchaser of each target unit shall execute an instrument approved by the city and to be recorded against the parcel, including such provisions as the city may require to ensure continued compliance with this chapter.
D.
In the case of rental housing developments, the density bonus housing agreement shall provide for the following:
1.
Procedures for establishing affordable rent, filling vacancies, and maintaining target units for eligible tenants;
2.
Provisions requiring verification of household incomes;
3.
Provisions requiring maintenance of records to demonstrate compliance with this subsection; and
4.
The developer's agreement that the restrictions on rents are consistent with the Costa-Hawkins Act (Cal. Civ. Code §§ 1954.51 through 1954.535).
E.
Density bonus housing agreements for child care facilities and land dedication shall ensure continued compliance with all conditions included in Sections 17.43.060 and 17.43.040, respectively.
(Ord. No. 352, § 1, 11-28-2018)