COMPREHENSIVE ZONING ORDINANCE
Part 3 of this Title shall be known as the “Zoning Ordinance of Spanish Fork City, Utah”. Within the ordinance text, it shall be cited as “this ordinance”.
This ordinance is adopted pursuant to the authority contained in Utah Code Annotated §10-9a-101 et seq. (1953 as amended) to promote the public health, safety, and general welfare of the community. It is the intention of the Council that this ordinance and any amendments thereto implement the planning policies as expressed and adopted in the General Plan. The purpose of this ordinance is to:
These regulations are designed to regulate and protect the rights of legally existing nonconforming uses and noncomplying structures. Any lawful use or activity conducted under County zoning regulations at the effective date of Annexation or under previous City zoning regulations in effect at the adoption of this ordinance which no longer complies with the regulations of this ordinance shall be considered a legal nonconforming use or noncomplying structure. The site, structure, or use will be encouraged to convert to a conforming use in the future, although some limited expansion or enlargement may be allowed subject to the provisions of this section. A nonconforming use is lost if it is abandoned.
(Ord. No. 10-12, Amended 08/21/2012)
(Ord. No. 03-18, Amended 02/20/2018)
(Ord. No. 14-16, Amended 09/20/2016)
(Ord. No. 14-16, Amended 09/20/2016)
(Ord. No. 14-16, Amended 09/20/2016)
(Ord. No. 14-16, Amended 09/20/2016)
(Ord. No. 04-14, Amended 04/01/2014)
When there is uncertainty with respect to the boundaries of any zoning district on the Official Zoning Map, the following rules shall apply:
(Ord. No. 14-16, Amended 09/20/2016)
Uses of land which are not expressly permitted within the zoning districts as set forth in Part 3 of this Title are prohibited. The City shall be divided into zoning districts as follows:
(Ord. No. 14-16, Amended 09/20/2016)
A-E. Exclusive Agriculture. The purpose of this district is to promote agricultural production on lands with high quality soil types. The lands will usually not be suited for other urban uses because of location within a floodplain, or distance to other urban services. All agricultural uses are allowed in this zone. A cannabis cultivation facility is permitted with conditions (see SFMC §5.48.030(A) and (B)) R-R. Rural Residential. This district is similar in character to the A-E District, but parcel sizes are generally somewhat smaller and the soil types may be lower quality. Many of these areas within the Growth Management boundary will likely be rezoned and developed with higher density uses as utilities are extended and adequate streets are developed and/or widened. Other lands outside the Growth Management Boundary may eventually be converted to urban uses when a need is shown to expand that boundary.
(Ord. No. 12-09, Amended 08/04/2009) (Ord. No. 04-14, Amended 04/01/2014) (Ord. No. 21-18, Amended 12/11/2018)
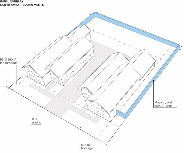
R-1-80, R-1-60, R-1-40, R-1-30: These districts provide a rural residential environment within Spanish Fork that are characterized by large single-family lots conducive to animal rights as defined in §15.3.24.090(G). R-1-20, R-1-15, R-1-12: These districts provide low density single-family lots within Spanish Fork City. In the event a Master Planned Development is constructed within any of these zones, townhomes, condominiums, and twin homes are allowed, consistent with the requirements of the Master Planned Development section of Title 15, found in §15.3.20.080. R-1-9, R-1-8: These districts are to provide moderate density that is characterized by a variety of single-family housing types and lot sizes. In the event a Master Planned Development is constructed within either of these zones, townhomes, condominiums, and twin homes are allowed, consistent with the requirements of the Master Planned Development section of Title 15, found in §15.3.20.080. R-1-6: This district provides a residential environment that is medium density. In the event a Master Planned Development is constructed within this zone, townhomes, condominiums, duplexes, and twin homes are allowed, consistent with the requirements of the Master Planned Development section of Title 15, found in §15.3.20.080. Single-family homes on lots that are less than 6,000 square feet may also be permitted if a project is approved for the Infill Overlay Zone.
(Ord. No. 12-09, Amended 08/04/2009)
(Ord. No. 10-12, Amended 08/22/2012)
(Ord. No. 17-15, Amended 12/15/2015)
(Ord. No. 03-18, Amended 02/20/2018)
(Ord. No. 21-18, Amended 12/11/2018)(Ord. No. 12-19, Amended 06/18/2019)
This district is intended to promote high density residential uses. There will be a mix of dwelling types, with a larger proportion of twin homes, duplexes, and multi-family dwellings than single residence dwellings. Only individual lots for single-family homes will be approved as standard subdivisions. For a project to include twin homes, duplexes, and multi-family dwellings, a project must be approved as a Master Planned Development §15.3.20.080 or with the Infill Overlay Zone §15.3.16.035.
(Ord. No. 12-09, Amended 08/04/2009) (Ord. No. 17-15, Amended 12/15/2015) (Ord. No. 03-18, Amended 02/20/2018) (Ord. No. 21-18, Amended 12/11/2018)
This district is intended to allow high density residential uses. There will be a mix of home types in this zone and it is anticipated that the majority of the homes in this zone will be in multi-unit structures arranged in both townhome and stacked flat configurations. Only individual lots for single-family homes will be approved as standard subdivisions. For a project to include twin homes, duplexes, and multi-family dwellings, a project must be approved as a Master Planned Development §15.3.20.080.


(Ord, No. 05-16, Enacted 04/05/2016)
This district is intended to allow for the redevelopment of parcels located in the central part of the community. It is anticipated that the majority of the dwellings in this zone will be in multi-unit structures arranged primarily in a stacked configuration. The R-5 zone may only be utilized in the original plats of the City between 300 West, 1000 North, 800 East and 400 South. The R-5 zone is only available where properties have the Mixed Use, High Density Residential or Urban Density designations in the Comprehensive General Plan.


(Ord. No. 24-2023, Repealed 12/12/2023)
This district is intended to allow low intensity professional office uses on a scale consistent with residential areas. Strict architectural and Site Plan review will be required to ensure compatibility with adjoining residential areas. This district serves as a transition between more intense commercial areas and residential land uses, or is located along busier streets where limited office use is being introduced. Residential and office use of the same structure is allowed. Some limited commercial use may also be allowed in selective locations.
(Ord. No. 12-09, Amended 08/04/2009)
This district is intended to provide for general office development. It may serve as a transition between commercial uses and residential areas, or it may be designed as a concentration of similar uses intended as an employment center.
(Ord. No. 12-09, Amended 08/04/2009) (Ord. No. 03-18, Amended 02/20/2018) (Ord. No. 21-18, Amended 12/11/2018)
This district is intended to promote and maintain the character of a pedestrian oriented retail district along Main Street. Building orientation should strongly encourage pedestrian use by having buildings close to the street with frequent entrances to buildings, and significant amounts of glass. Drive-thru uses should be strongly discouraged.
(Ord. No. 12-09, Amended 08/04/2009) (Ord. No. 18-10, Amended 09/23/2010) (Ord. No. 06-11, Amended 04/20/2011) (Ord. No. 12-12, Amended 09/28/2012) (Ord. No. 21-18, Amended 12/11/2018)
This district is intended to provide small scale retail, personal and business services, and office uses to serve the immediate residential area. Individual businesses may not exceed 7,500 square feet and buildings may not exceed 10,000 square feet. Buildings and sites shall be designed to limit the size of parking fields and to have similar characteristics of surrounding neighborhoods. Particular focus and attention shall be given to building design to encourage compatibility with the surrounding homes.
(Ord. No. 12-09, Amended 08/04/2009)
This district is intended to provide for a wide range of commercial uses designed to serve neighborhood, community, and regional needs. Uses may be freestanding or integrated in a center.
(Ord. No. 12-09, Amended 08/04/2009)
(Ord. No. 02-10, Amended 02/16/2010)
(Ord. No. 21-18, Amended 12/11/2018)
(Ord. No. 14-19, Amended 07/09/2019)
This district is intended to provide retail uses, service-oriented businesses, offices, and restaurants in an integrated center. Each center shares common architecture, access, parking, signage, and landscape design. Centers will typically be five (5) acres in size and provide neighborhood or community level destination shopping while incorporating a design which enhances pedestrian orientation within the center.
(Ord. No. 12-09, Amended 08/04/2009)
(Ord. No. 15-15, Amended 09/15/2015)
This district is intended to provide controlled and compatible settings for a wide range of commercial and residential uses in the same area, uses designed to serve neighborhood, community, and regional needs. Uses may be freestanding or integrated in a center. Developments in this district will be designed towards pedestrians in mind; designs will have the character of an urban village; with high quality materials being used. The Planning Commission will review all Site Plans and subdivisions.
(Ord. No. 10-09, Amended 06/17/2009) (Ord. No. 12-09, Amended 08/04/2009) (Ord. No. 17-09, Amended 09/15/2009)
(Ord. No. 12-09, Amended 08/04/2009)
This district is intended to provide for employment related uses including light manufacturing, assembling, warehousing, and wholesale activities. Associated office and support commercial uses are allowed. Uses that emit significant amount of air, water, or noise pollution will not be allowed. Residential uses are not allowed.
A. Permitted Uses:
1. Adult Day Care.
2. Agriculture, including the Production of Food and Fiber Crops, Tree Farms, Grazing, and Animal Husbandry of Livestock, not including Feedlots.
3. Automotive Repair.
4. Automotive Service, Paint and Body Work, other consumer goods repair.
5. Caretaker's Residence.
6. Car Wash (self or full service).
7. Child Care Centers
8. Contractor Warehouse and Storage Yards.
9. Financial Institutions.
10. Funeral Homes.
11. Indoor Manufacturing, Assembly and Storage of finished products.
12. Indoor Pickleball Facility
13. Instructional Studios.
14. Lube Centers.
15. Lumber and Building Material Yards.
16. Municipal Facilities required for local service.
17. New and Used Automobile, Motorcycle, Boat, Truck, Recreational Vehicle Sales and Rental Facilities, and Repair Services associated with such facilities.
18. Office Supply, Copying, Printing businesses.
19. Offices.
20. Outdoor display areas.
21. Research, Development, and Testing services.
22. Restaurants.
23. Retail businesses.
24. Telecommunication Towers not taller than 60 feet.
25. Tire Care Centers.
26. Trade or Business schools.
27. Trucking and Warehousing.
28. Veterinary Offices for large animals and/or outside boarding of animals.
29. Wholesale Trade Businesses except explosives or automobile wrecking or salvage yards.Permitted Uses:
B. Uses Subject to Conditions:
1. Outdoor storage areas (see §15.3.24.090(I)).
2. Seasonal Sales and Special Events (as described in §15.3.24.050 et seq.).
3. Sexually Oriented businesses as defined in Chapter 5.28 of the Spanish Fork Municipal Code.
4. Cannabis Processing Facility (see §5.48.030).
C. Uses Subject to Conditional Use Permit (see§15.3.08.060).
1. Commercial Kennels, Animal Shelters, and Veterinary Hospitals with outdoor boarding or exercise facilities.
2. Drive-in Theaters.
3. Indoor Commercial Recreation Facilities.
4. Jails. for County and/or City.
5. Meat Processing Facilities.
6. Outdoor Commercial Recreation Facilities.
7. Publicly owned and operated compost facilities.
8. Publicly owned and operated recycling centers.
9. Rehabilitation Treatment Facilities.
10. Residential Treatment Centers (not owner occupied).
11. Shelter Care Facilities.
12. Telecommunication Towers taller than 60 feet.
(Ord. No. 12-09, Amended 08/04/2009) (Ord. No. 02-10, Amended 02/16/2010)
This district is intended to provide for employment related uses including light manufacturing, assembling, warehousing, and wholesale activities. Associated office and support commercial uses are allowed. Uses that emit moderate amounts of air, water, or noise pollution may be considered as conditional uses. Residential uses are not allowed.
(Ord. No. 12-09, Amended 08/04/2009) (Ord. No. 02-10, Amended 02/16/2010)
This district is intended to provide for employment related uses including heavy manufacturing, assembling, warehousing, and wholesale activities. Residential uses are not allowed.
(Ord. No. 07-06, Repealed 07/18/2006) (Ord. No. 02-10, Enacted 02/16/2010)
(Ord. No. 12-09, Repealed 08/04/2009)
This district is intended to provide for structures and uses that are owned, leased, or operated by a governmental entity for the purpose of providing governmental services to the community. Allowed uses will be necessary for the efficient function of the local community or may be desired services which contribute to the community's cultural or educational enrichment. Other allowed uses will be ancillary to a larger use that provides a direct governmental service to the community.
(Ord. No. 12-09, Amended 08/04/2009) (Ord. No. 02-10, Amended 02/16/2010) (Ord. No. 13-14, Amended 08/19/2014) (Ord. No. 21-18, Amended 12/11/2018)
This district is intended to provide for the development of improvements at the airport that will enhance the facility’s functionality and visual appeal. These standards are not intended to limit creativity but are expected to facilitate development that creates a distinct sense of place that is recognizable by aeronautical professionals and the community at large. The distinct sense of place will be created by following basic provisions concerning building materials, building orientation, building color and signage. Care shall be taken in this district to ensure compliance with FAA regulations.
(Ordinance 16-17; Created June 20, 2017)
This district is intended to provide for the extraction of earth products using surface mining methods while protecting the rights of neighboring properties and while protecting public facilities, such as roads, from unusual wear or damage. This is an interim use of the land, with the ultimate intent being to rehabilitate the site and convert the property to a use or uses compatible with the surrounding area. This district shall overlay other zoning district(s) where it is applied.
(Ord. No. 12-09, Amended 08/04/2009)
This district is intended to provide for the development of new Self Storage Warehouses and/or Recreational Vehicle Storage while protecting the City’s potential for economic growth by preserving sites that could potentially support retail, professional office, or manufacturing uses. This district shall overlay the Light Industrial I-1 zoning district where it is applied.
(Ord. No. 17-15, Enacted 12/15/2015)
This district is intended to provide an ability to develop properties within R-O Residential Office Zone, C-O Commercial Office Zone, C-2 General Commercial Zone, S-C Shopping Center Zone, C-UV Urban Village Commercial Zone, I-1 Light Industrial Zone, and B-P Business Park Zone which otherwise have a difficult time meeting the standards for those zones for any number of reasons, including, but not limited to, parking standards, landscaping standards, etc.
(Ord. No. 08-17, Enacted 03/07/2017) (Ord. No. 24-17, Amend 10/17/2017)
This district allows for the operation of facilities that sell, transport, store, process, and reclaim aggregate materials for use and reuse in the construction industry. The primary function of these operations are the transportation of aggregate and the maintenance of vehicles. The storage of aggregate material, both raw material and material that has been or will be recycled, and facilities to process that material, such as screens and crushers, are ancillary components of the operation.
This district is an alternative to developing property by strict adherence to standard zoning and development requirements, which may only be approved as a Zoning Map Amendment as provided in this section. The Master Planned Development (MDP) Overlay District is not a replacement for a standard subdivision but serves as an option. It is intended to provide an option in order to create residential neighborhoods that will increase in value over time by doing the following:
| ||
|
|
|
|
|
|
|
|
|
|
|
|
|
|
|
|
|
|
|
|
|
|
|
|
|
|
|
|
|
|
|
|
|
|
|
|
This district is intended to provide flexibility in development standards for small residential parcels. consisting of two (2) acres or less. that are difficult to develop under standard residential requirements. allowing them to be developed with modified standards. while maintaining high quality construction and maintaining the general character of the underlying zone. This zone may only be applied as an overlay zone in the R-1-6 and R-3 zones. Prior to approving the 1-F Zone, the City Council shall determine that the proposed development promotes the historic character of the neighborhood and conforms to the physical characteristics of the adjoining properties including architectural style, materials and size.


(Ord. No. 04-09, Amended 07/08/2009) (Ord. No. 02-15, Amended 02/03/2015) (Ord, No. 04-16, Amended 02/16/2016) (Ord, No. 05-16, Amended 04/05/2016) (Ord. No. 21-18, Amended 12/11/2018) (Ord. No. 03-19, Amended 01/22/2019)
Distinct designs. Development shall include a variety of home styles to ensure a diverse and interesting streetscape. Neighborhoods that have repetitive residential structures constructed along the same street are not allowed. In order to ensure that the neighborhood is non- repetitive, the same street facing elevation shall not be built on adjacent lots on the same street or on lots directly or diagonally across the street from one another. Different elevations shall be characterized by elements such as, but not limited to, distinct footprints, rooflines, cladding materials or architectural features which contribute to home designs that are easily distinguishable from other home designs along the same street. . Parking. Developments shall provide at least two and a half (2.5) parking spaces per home in the development. A two-car garage for each single-family residence is required. Two and three-unit structures must have at least a one-car attached or detached garage. One-car garages shall be at least 12 by 20 feet in size, two-car garages shall be at least 20 by 20 feet in size. Doors for no more than one garage may be visible per residential structure, per street. Driveways located between garage doors and street facing property lines shall be at least 20 feet deep.
Exterior materials. Homes shall be clad in masonry, or masonry-based materials or a chemically-treated, wood-based, nail-on, lap siding that has at least a 50-year warranty. The City Council may grant a waiver of this requirement based upon superior architectural design plans which involve other materials.
| Minimum Finished Floor Area | ||
| Minimum Lot Size and Multi-Family | One story | Multi-Level |
| 80,000 sq. ft. | 1,600 sq ft. | 2,400 sq. ft. |
60,000 sq. ft | 1,600 sq ft. | 2,400 sq. ft. |
| 40,000 sq. ft. | 1,600 sq. ft. | 2,400 sq. ft. |
| 30,000 sq. ft. | 1,500 sq. ft. | 2,200 sq. ft. |
| 20,000 sq. ft | 1,500 sq. ft. | 2.200 sq. ft. |
| 15,000 sq. ft | 1,500 sq. ft. | 2,200 sq. ft. |
| 12,000 sq. ft. | 1,400 sq. ft. | 2,000 sq. ft. |
| 9,000 sq. ft. | 1,300 sq. ft. | 1,600 sq. ft. |
| 8,000 sq. ft. | 1,200 sq. ft. | 1,500 sq. ft. |
| 6,000 sq. ft. | 1,100 sq. ft. | 1,400 sq. ft. |
| Multi-Family | 1,000 sq. ft. (one-level) | 1,200 sq. ft. (multi-level) |
(Ord. No. 04-12, Enacted 04/17/2012) (Ord. No. 04-17, Amended 02/07/2017)
Billboards are addressed in Spanish Fork Municipal Code §5.36.070.
(Ord. No. 10-12, Amended 08/22/2012)
(Ord. No. 04-14, Amended 04/01/2014)
(Ord. No. 14-16, Amended 09/20/2016)
(Ord. No. 09-19, Amended 05/07/2019)
Ord 05-2023 Repealed 04/18/2023 and put in 15.3.20.080 Master Planned Development Overlay District
(Ord. No. 07-06, Amended 07/18/2006) (Ord. No. 08-09, Enacted 05/19/2009) (Ord. No. 11-13, Amended 07/16/2013) (Ord. No. 15-13, Repealed; Re-enacted 09/03/2013) (Ord. No. 04-14, Amended 04/01/2013) (Ord. No. 15-15, Amended 09/15/2015) (Ord. No. 01-17, Repealed 01/03/2017) (Ord. No. 03-19, Amended 01/22/2019)
(Ord. 07-06, Amended 07/18/2006)
Temporary sales or display of goods or special events are allowed only if they are related to a particular seasonal, cultural, traditional, or community activity or event for a period not to exceed 60 calendar days, as determined by the City Planner. In making a determination, the City Planner shall consider the following criteria:
The sale or special event possesses a valid City Business License.
(Ord. No. 14-16, Amended 09/20/2016)
(Ord. No. 14-16, Amended 09/20/2016)
Sexually oriented businesses are permitted only in the I-1 Light Industrial Zone north of 1600 North and west of Interstate 15, with the following restrictions:
For purposes of this section, “park” means public land within the City which has been designated for park or recreational activities, including but not limited to, a Child Care Center, a park, playground, nature trail, swimming pool, reservoir, athletic field, basketball or tennis court, open space, wilderness areas, or similar public land and related facilities such as parking lots, playgrounds, and ball fields, which are under the control, operation, or management of the City or other governmental authorities.
Accessory Buildings, Structures, or Satellite Earth Stations.
Swimming Pools
Yard/Garage Sales
Irregular Lots
Accessory Dwelling Units (ADUs)
Awnings, Carports or Covered Decks
Animals
Wind Turbines (WT)
Outdoor Storage Areas
Public Rights-of-Way
Temporary Uses
Amateur Radio Antennas



B. Swimming Pools:
1. Swimming Pools and Jacuzzis shall comply with the following setbacks:
a. Minimum setback to a front property line is thirty (30) feet; however, they shall also be located behind the front wall plane of the principal structure.
b. Minimum setbacks to interior side or rear property lines are five (5) feet.
c. Minimum setback to a corner property line is ten (10) feet.
2. Enclosures or coverings shall comply with accessory structure regulations.
3. Swimming Pools shall not be located in municipal or public utility easements. Setback requirements from property lines must still be met.
4. Swimming Pools shall comply with applicable Building Code safety regulations.
C. Yard/Garage Sales:
1. Yard sales are permitted for no more than three (3) events of 48 hours or less within a 12-month period at the same residence or street address. No signage related to such events shall be placed in the public right-of-way (e.g. no placement of signs on telephone and light poles).
D. Irregular Lots:
1. All dwelling structures and other main buildings located on an irregular lot shall be set back an average of 20 feet from the rear property line provided that no portion of the building is closer than 15 feet to the property line.
E. Accessory Dwelling Units (ADUs):
1. This sub-section is established to provide regulations for ADUs.
2. Requirements for Approval. A building permit may only be issued for ADUs provided that the following requirements are met:
a. The property must be located in the R-3, R-1-6, R-1-8, R-1-9, R-1-12 or R-1-15, R-1-20, R-1-30, R-1-40, R-1-60, R-1-80 or R-R zones.
b. The owner of the property must reside on the property. Exceptions shall be permitted if the property owner applies to have the occupancy requirement suspended, if the owner has resided on the property for at least one (1) year and if any of the following situations exist:
1. The owner has a bona fide, temporary absence of three (3) years or less for activities such as temporary job assignments, sabbaticals, or voluntary service (indefinite periods of absence from the dwelling shall not qualify for this suspension).
2. The owner is placed in a hospital, nursing home, assisted living facility or other similar facility.
c. Only one (1) ADU shall be created on a parcel. The ADU may only be located within a single-family dwelling or in an Accessory Structure. Accessory Structures that house ADUs shall be constructed as permanent structures. A Recreational Vehicle is not considered an accessory structure and may not be used as an ADU.
d. ADUs are only permitted on lots 6,000 square feet or larger.
e. The property must have a total of three (3) parking spaces for the primary single-family dwelling with an internal ADU and four (4) parking spaces for a primary single-family dwelling with an external or detached ADU, which meet the criteria provided in section §15.4.16.120. i.e., two (2) parking spaces are required for the primary single-family dwelling and one (1) parking space for the internal ADU. The parking spaces for the ADU may not be provided in a tandem arrangement.
f. The ADU must be registered with the City Community Development Department. Any fees required for registration shall be defined in the City's Annual Budget.
g. The ADU shall meet all applicable building and fire codes.
F. Awnings, Carports or Covered Decks:
1. Awnings or structures that are open on three (3) sides on the rear portion of a home may extend within 15 feet of the rear property line.
2. Awnings or other structures that are open on three (3) sides must be setback at least five (5) feet from the side property line.
3. A building permit must be obtained for all awnings.
G. Animals:
1. Animals are allowed in the A-E, R-R, I-1, and I-2 zoning districts with no restrictions on the maximum number. Animals are allowed in all other zoning districts subject to the following regulations:
a. The portion of the property on which the animals, except for household pets, are kept must be at least one-half (1/2) acre in size. The chart following this section sets forth the only types of animals that may be kept and the maximum number of animals which may be kept per each one-half (1/2) acre of property. The numbers are not cumulative. A maximum of one (1) species precludes any other species. For example, on a half-acre (1/2) two (2) horses may be kept, or four (4) sheep, or one (1) horse and two (2) sheep, but two (2) horses and four (4) sheep are not allowed.
b. All requirements set forth in Title 6, Animals, must be met. The keeping of chickens and potbellied pigs in any zone other than the A-E, R-R, I-1, or I-2 is governed by Title 6.
c. No animal shall be kept in a residential zone for purpose of commercial production.
| Animal | Maximum # Per 1/2 Acre |
| Cattle | 2 |
| Horses | 2 |
| Sheep, Goats, Llamas, Ostriches | 4 |
| Rabbits | 10 |
| Pigeons | 12 |
| Ducks, Geese | 8 |
| Game Birds * | 8 |
| *with appropriate permits |
H. Wind Turbines (WT):
1. It is the purpose of this section to promote the safe, effective, and efficient use of large wind energy systems installed to provide electricity to utilities and to promote the adoption of renewable energy resources to reduce dependence on fossil fuel power generation.
a. Requirements:
1. Minimum parcel size: A large wind energy system consisting of one (1) tower must be located on a parcel that is a minimum of five (5) acres in size. An additional acre of property is required for each additional tower.
2. Onsite structures may be located up to the foundation of the tower.
3. Setback from a residential zone or use: The tower base must be setback a minimum of 500 feet from residential zoning districts.
4. Distance from rights-of-way and property lines: None; but all tower bases must be located on leased or owned property. The blade sweep cannot encroach upon adjoining properties or rights-of-way without easements providing for their encroachment. The easement must be a recorded document.
5. Height: Tower height is not to exceed 270 feet. Provided that, in all cases, the system shall comply with all applicable Federal Aviation Administration (FAA) requirements.
6. Height of Blade (tip at low point of blade sweep from ground): No closer than 50 feet.
7. Braking Device: All WT devices shall have braking systems when winds reach speeds in excess of 65 miles per hour.
8. Sign: One (1) project identification warning sign is permitted containing a telephone number for emergency calls, no larger than 16 square feet in size.
9. Color/Finish: white or other non-reflective color.
10. Interference with Broadcast Signals: The system shall not create electromagnetic interference and shall be filtered and/or shielded to prevent interference with broadcast signals.
11. Compliance with International Building Code (IBC): Building Permit applications for large wind energy systems shall be accompanied by standard drawings of the WT structure, including the tower, base, and footings. An engineering analysis of the tower and WT showing compliance with the Building Code and certified by a professional engineer licensed in the state of Utah shall also be submitted.
12. Compliance with FAA Regulations: Large wind energy systems must comply with applicable FAA regulations, including any necessary approvals for installations close to airports.
13. Utility Notification: A letter shall be provided from any interconnecting utility companies confirming approval for any interconnection.
14. Zoning Districts: Large wind energy systems are permitted only in the I-3 Heavy Industrial zoning district.
15. Wind Study: A wind or feasibility study must be conducted and recommend a specific location for the WT. The study must also recommend an optimal height for the WT and if the location is feasible for a WT.
16. The tower shall not be climbable from the exterior.
I. Outdoor Storage Areas. The following conditions must be met:
1. The storage area must be paved with asphalt or concrete or be covered with gravel. In situations where gravel is utilized, no less than four (4) inches of untreated base course shall be installed. Additional improvements may be required by the City Engineer in accordance with the findings of a site-specific geotechnical report. Where a paving material other than asphalt or concrete is utilized, a drive apron shall be installed at all points of vehicular access. The drive apron shall be 26 feet wide and no less than 60 feet long.
2. The outdoor storage area must be screened from surrounding properties with a six (6) foot tall Wall except where the adjoining property is a railroad right-of-way, Interstate 15 or SR-6 adjacent to industrial zones. Where the outdoor storage area abuts a public street, a 10-foot-wide landscaped planter shall be installed between the Wall and the sidewalk or right-of-way. Landscaping shall be installed and maintained in accordance to the requirements found in §15.4.16.130.
3. For outdoor storage areas located in the Industrial 2 or 3 zones, stackable concrete blocks may be used as the required screen for outdoor storage areas unless the screen would be placed adjacent to a public street. When stackable concrete blocks are used to provide a required screen for outdoor storage areas, they shall include a wall cap and be painted or stained in the same manner as other walls as described in the City's construction standards. Where the screen is required adjacent to a public street, the stackable concrete blocks shall not be allowed but instead a wall as described in Title 15 and further defined in the City's construction standards is required.
4. Lighting shall be provided in outdoor storage areas. A photometric lighting plan shall be submitted with the Site Plan application. The lighting plan shall demonstrate the capacity of the proposed lighting to uniformly illuminate the storage area without creating undue spillover onto surrounding properties.
5. Material kept in an outdoor storage area cannot be stacked or piled to a height that exceeds 12 feet.
J. Public Rights-of-Way:
1. It is not permitted to store or display merchandise or any other material, excepting those signs permitted in §5.36.050(I), within any public right-of-way. In certain locations designated by Spanish Fork City, outdoor seating may be permitted in accordance with restrictions provided in the City’s Development Standards.
K. Temporary Uses:
1. Certain uses may be permitted on a temporary basis in Zoning Districts where they otherwise are not allowed. Express written approval must be provided by the Community Development Director prior to the commencement of a Temporary Use. Temporary Uses will be limited to those identified in a particular Zoning District and will be subject to conditions. The specific conditions associated with each Temporary Use will address the approved duration of the use, the precise nature of the use, the scope of the use and any others deemed appropriate for a particular situation. Business operating approved Temporary Uses must maintain a valid Spanish Fork City Business License.
L. Amateur Radio Antennas:
1.This section shall apply to amateur radio, also known as HAM radio, antennas and support structures.
2. General Regulations. Amateur radio antennas and support structures are allowed as a permitted use in all zones up to a height of forty-five (45) feet, subject to the conditions of this section. All amateur radio antennas and support structures shall comply with the following requirements.
a. All facilities shall comply with any pertinent regulations of the Federal Communications Commission (FCC) and the Federal Aviation Administration (FAA).
b. A building permit is required for any antenna and support structure with a combined height over twelve (12) feet. The design and construction of the antenna, as demonstrated by manufacturer specifications or by certification of a design professional (architect, professional engineer, or structural engineer) and support structure must be able to withstand wind loads of 80 mph and greater.
c. No more than one amateur radio support structure per lot or parcel may be installed. A support structure may only be located in the rear yard of a home or primary structure. A roof-mounted antenna shall be allowed provided that the height of the antenna and support structure does not exceed twelve (12) feet above the roof.
d. Setbacks for all amateur radio support structures shall be at least twenty feet (20’) from neighboring property lines and a minimum of thirty feet (30’) from any public right of way.
e. Support structures and all antennas, including when such antennas are fully extended, shall be located entirely upon and within the owner’s private property. No part of a support structure or antenna may extend beyond the boundaries of the lot or parcel upon which it is located, including into the right-of-way of any public or private street. No part of an antenna or support structure may be closer than 15 feet from an electric distribution conductor or 30 feet from an electric transmission conductor.
f. A support structure shall be composed of non-reflective galvanized steel or aluminum and shall be a neutral color or a color to match the background against which it will be most commonly seen.
g. Antennas are to be installed on a building or property in the least conspicuous location possible.
h. A support structure in a residential zone may not make use of guy wires.
i. Antennas shall be retracted, lowered, nested, or otherwise moved to a resting position when they are not being actively used for transmitting and receiving signals.
3. Conditional Use for Additional Height, Lesser Setbacks. The City desires to provide reasonable accommodations for antennas and support structures, where appropriate, to ensure the standards contained in this section represent the minimum practicable regulation to accomplish the City’s legitimate safety and aesthetic purposes. A conditional use permit shall be granted by the Planning Commission to allow amateur radio antennas and support structures to exceed 45 feet in height or to be setback less than the distance required by this section if it finds that the additional height or lesser setback will not create any negative impact or if reasonable conditions are proposed, or can be imposed, to mitigate the reasonably anticipated detrimental effects of the additional height or lesser setback in accordance with applicable standards. It is the intent of the City to reasonably accommodate antennas and support structures to the greatest extent practicable without negatively impacting public safety or the aesthetic quality of the neighborhood in which they are located. Antennas and support structures will generally not be allowed at a greater height or lesser setback to the extent the greater height or lesser setback negatively impacts the public safety or aesthetics of the neighborhood in which they are located. In determining whether amateur radio antennas and support structures should be allowed to exceed 45 feet in height or have a lesser setback, the Planning Commission shall consider the following factors:
a. The potential negative impact on public safety, especially the safety of life and property in the public rights-of-way or on adjacent properties.
b. The potential negative impact that the structure will have on the views of properties in the neighborhood. Special consideration shall be given to the impact on the views of attractive natural features such as the Wasatch Mountains, the Spanish Fork River bottoms, and Utah Lake.
c. The potential negative impact that the structure will have on the overall aesthetic quality of the neighborhood in which the structure is located.
d. The potential impact the structure may have on property values in the neighborhood in which the structure is located as demonstrated by a market analysis or appraisal. Speculative testimony is insufficient to establish any impact upon property values.
e. The need of the owner/operator for an antenna and support structure in excess of 45 feet or for a lesser setback distance.
f. The extent to which any reasonably anticipated detrimental effects of the structure can be mitigated. Factors that may reduce the negative impact that a structure will have on the aesthetic quality of a neighborhood and which may be made a condition(s) for the allowance of a height greater than 45 feet or lesser setback include but are not limited to the following:
1. For additional height, setbacks from adjoining property that significantly exceed the required setbacks listed in subsection (1)(d) above.
2. The current existence and use of trees or other means to screen or camouflage the structure.
3. The use of a retractable support structure, which is retracted when not in use or which is fully extended only during limited hours so long as the antenna, when extended, does not cross property lines.
4. The location of a support structure adjacent to land that is undeveloped and not likely to be developed due to topography or other characteristics. Streets may not be considered as undeveloped land.
5. The location of a support structure in or adjacent to commercial property, churches, schools, parks, or similar property such that the support structure will not unreasonably impair the views of residential property owners.
6. Any other factor that could reasonably mitigate the negative impact of the structure.
g. The existence of one or more of the conditions listed above does not create a presumption that the negative impacts of an antenna or antenna support structure are adequately mitigated.
4. Abandonment. An antenna or support structure shall be deemed to be abandoned and must be removed if the antenna is not used for a period of two (2) years or more. However, this two-year period shall not run during any time when the owner is away on a temporary leave of absence due to military service, a volunteer service assignment, ecclesiastical assignment, or other similar absence.
M. Impound Yard. The following conditions must be met:
1. The yard must be paved with asphalt or concrete or be covered with gravel. In situations where gravel is utilized, no less than found (4) inches of untreated base course shall be installed. Additional improvements may be required by the City Engineer in accordance with the findings of a site-specific geotechnical report. Where a paving material other than asphalt or concrete is utilized, a drive apron shall be installed at all points of vehicular access. The drive apron shall be paved with concrete or asphalt 26 feet wide and no less than 60 feet long and a 26 foot-wide all-weather driveway shall be constructed from the end of the apron to the Impound Yard.
2. When the yard is located within 100 feet of a public right-of-way, a six (6) foot tall Wall shall be constructed between the yard and the public right-of-way. Exceptions to the Wall requirement may be granted by the Community Development Department where the public right-of -way is interstate 15 and a determination has been made that the yard is not visible from Interstate 15. When the yard abuts a public right-of-way, except for Interstate 15, a 10-foot-wide landscaped planter shall be installed between the Wall and the sidewalk or right-of-way. Landscaping shall be installed and maintained in accordance with the requirements found in §15.4.16.130.
3. Lighting shall be provided in impound Yards. A photometric lighting plan shall be submitted with the Business License application. The lighting plan shall demonstrate the capacity of the proposed lighting to uniformly illuminate the storage area without creating undue spillover onto surrounding properties.
4. Impound Yards shall be no larger than 30,000 square feet.
(Ord. No. 08-05, Enacted 06/07/2005) (Ord. No. 02-10, Amended 02/16/2010) (Ord. No. 23-10, Amended 11/16/2010) (Ord. No. 06-11, Enacted 04/19/2011)(Ord. No. 05-12, Amended 04/17/2012)(Ord. No. 10-12, Amended 08/21/2012)(Ord. No. 11-13, Amended 07/16/2013)(Ord. No. 04-14, Amended 04/01/2014)(Ord. No. 02-15, Amended 02/03/2015)(Ord. No. 11-15, Amended 06/16/2015)(Ord. No. 15-15, Amended 09/15/2015)(Ord. No. 17-15, Amended 12/15/2015)(Ord. No. 04-17, Amended 02/07/2017)(Ord. No. 04-17, Amended 02/07/2017)(Ord. No. 06-19, Amended 04/16/2019)(Ord. No. 12-19, Amended 06/18/2019)
For the purposes of this Chapter, the following words and phrases shall have the meanings respectively ascribed to them below:
“Advisory Board” means the Utah County Agriculture Protection Area Advisory Board.
“Agriculture production” means production for commercial purposes of crops, livestock, and livestock products and includes the processing or retail marketing of any crops, livestock, and livestock products when more than 50% of the processed or merchandised products are produced by the farm operator. Agriculture production includes Agritainment as defined in Title 15, including corn mazes, hay rides, petting zoos, farm stands, and farmer's markets.
“Agriculture protection area” means a geographic area within Spanish Fork City created under the authority of Chapter 41, Title 17, Utah Code Annotated, 1953 as amended, and of this Chapter, that is granted the specific legal protections contained in Chapter 41, Title 17, Utah Code Annotated, 1953 as amended.
“Contiguous” means touching along a common side or so close in proximity as to be separated only by the width of a road, canal, railroad track, easement, or similar right-of-way.
“Crops, livestock, and livestock products” includes: (1) land devoted to the raising of useful plants and animals with a reasonable expectation of profit, including: (A) forages and sod crops; (B) grains and feed crops; (C) livestock as defined in Subsection 59-2-102(20), Utah Code Annotated, 1953, as amended; (D) trees and fruits; or (E) vegetables, nursery, floral and ornamental stock; or (2) land devoted to and meeting the requirements and qualifications for payments or other compensation under a crop-land retirement program with an agency of the state or federal government.
“Planning Commission” means the Spanish Fork Planning Commission.
“Political subdivision” means a county, city, town, school district, or special district.
“Proposal sponsors” means the owners of land in agricultural production who are sponsoring the proposal for creating an agriculture protection area.
“State agency” means each department, commission, board, council, agency, institution, officer, corporation, fund, division, office, committee, authority, laboratory, library, unit, bureau, panel, or other administrative unit of the state.
“Unincorporated” means not within a city or town.
Spanish Fork City supports the establishment of agriculture protection areas within the limitations established by this Chapter to protect and sustain production agriculture. Furthermore, Spanish Fork City recognizes that the adoption of an agriculture protection area will not restrict a citizen’s ability to file a complaint about an agriculture practice. Rather, Spanish Fork City hopes to protect agricultural land owners from civil lawsuits and criminal prosecution as long as the owner employs safe, sound, and reasonable agriculture practices.
After receipt of the written reports from the Advisory Board and Planning Commission, or after the 45 days has expired, whichever is earlier, the City Council shall:
In evaluating a proposal and in determining whether or not to create or recommend the creation of an agriculture protection area, the Advisory Board, Planning Commission, and City Council shall apply the following criteria:
No single criterion is necessary or sufficient for the establishment of an agriculture protection area. Rather, the criteria in this section are for evaluation and consideration by the Advisory Board, Planning Commission, and the City Council.
| Table 1 - Residential Development Standards | ||||||||||
| District | Maximum Density Per Acre | Minimum lot dimensions | Minimum Setback | Max Building Height5 | ||||||
| Lot Area | Width | Depth | Front6 | Rear7 | Side | Corner | Principal Building | Accessory Building1 | ||
| A-E | N/A | 40 acres | 400' | 400' | 50' | 50' | 50' | 50' | 35' | 35' |
| R-R | N/A | 5 acres | 200' | 200' | 50' | 50' | 25' | 50' | 35' | 35' |
| R-1-80 | .4 units | 80,000 sf | 180' | 200' | 40' | 80' | 20' | 30' | 35' | 20' |
| R-1-60 | .53 units | 60,000 sf | 160' | 200' | 40' | 60' | 20' | 30' | 35' | 20' |
| R-1-40 | .8 units | 40,000 sf | 140' | 200' | 30' | 40' | 20' | 30' | 35' | 20' |
| R-1-30 | 1.07 units | 30,000 sf | 130' | 150' | 40' | 40' | 15' | 25' | 35' | 20' |
| R-1-20 | 1.60 units | 20,000 sf | 125' | 150' | 30' | 30' | 15' | 25' | 35' | 20' |
| R-1-15 | 2.13 units | 15,000 sf | 100' | 125' | 20-25'2 | 25' | 10' | 15-25'4 | 35' | 20' |
| R-1-12 | 2.67 units | 12,000 sf | 100' | 100' | 20-25'2 | 25' | 10' | 15-25'4 | 35' | 20' |
| R-1-9 | 3.56 units | 9,000 sf | 85' | 90' | 15-25'2 | 25' | 10' | 15-25'4 | 35' | 20' |
| R-1-8 | 4 units | 8,000 sf | 75' | 90' | 15-25'2 | 25' | 10' | 15-25'4 | 35' | 20' |
| R-1-6 | 5.34 units | 6,000 sf | 50' | 90' | 15-25'2 | 25' | 5-10'3 | 15-25'4 | 35' | 20' |
| R-3 | 12 units | 6,000 sf | 50' | 90' | 15-25'2 | 25' | 5-10'3 | 15-25'4 | 35' | 20' |
| R-4 | 20 units | 6,000 sf | 50' | 90' | 15-25'2 | 25' | 5-10'3 | 15-25'4 | 50' | 20' |
| R-5 | 18 units | 6,000 sf | 50' | 90' | 10-20'8 | 15' | 15' | 15' | 40' | 20' |
| R-0 | N/A | 6.000 sf | 50' | 90' | 115-25'2 | 25' | 5-10'3 | 15-25'4 | 35' | 20' |
| ||||||||||
| Table 2 - Commercial and Industrial Development Standards | |||||||
| District | Minimum Setback1 | Max Building Height | |||||
| Front | Rear | Side | Corner | Principal Building | Accessory Building1 | ||
| C-O | 15'4 -25' | 0-25' | 0-10' | 10'5-15' | 30' | 20' | |
| C-UV | 25' | 0-25' | 0-20' | 15' | 35'-48'1 | 20' | |
| C-D | 0' (10' max) | 0-25' | 0' | 0' (10' max) | 48' | 20' | |
| C-1 | 25' | 0-25' | 0-20' | 0-15' | 30' | 20' | |
| C-2 | 15'4 -25' | 0-25' | 0-20' | 10'5-15' | 35-48'2 | 20-25'2 | |
| S-C | 25' | 0-25' | 0-20' | 15' | 35-60'2 | 20' | |
| B-P | 25' | 0-25' | 0-25' | 15' | 120' | 20' | |
| I-1 | 25' | 0-25' | 0-25' | 15' | None | None | |
| I-2 | 50' | 50' | 50' | 50' | None | None | |
| |||||||
COMPREHENSIVE ZONING ORDINANCE
Part 3 of this Title shall be known as the “Zoning Ordinance of Spanish Fork City, Utah”. Within the ordinance text, it shall be cited as “this ordinance”.
This ordinance is adopted pursuant to the authority contained in Utah Code Annotated §10-9a-101 et seq. (1953 as amended) to promote the public health, safety, and general welfare of the community. It is the intention of the Council that this ordinance and any amendments thereto implement the planning policies as expressed and adopted in the General Plan. The purpose of this ordinance is to:
These regulations are designed to regulate and protect the rights of legally existing nonconforming uses and noncomplying structures. Any lawful use or activity conducted under County zoning regulations at the effective date of Annexation or under previous City zoning regulations in effect at the adoption of this ordinance which no longer complies with the regulations of this ordinance shall be considered a legal nonconforming use or noncomplying structure. The site, structure, or use will be encouraged to convert to a conforming use in the future, although some limited expansion or enlargement may be allowed subject to the provisions of this section. A nonconforming use is lost if it is abandoned.
(Ord. No. 10-12, Amended 08/21/2012)
(Ord. No. 03-18, Amended 02/20/2018)
(Ord. No. 14-16, Amended 09/20/2016)
(Ord. No. 14-16, Amended 09/20/2016)
(Ord. No. 14-16, Amended 09/20/2016)
(Ord. No. 14-16, Amended 09/20/2016)
(Ord. No. 04-14, Amended 04/01/2014)
When there is uncertainty with respect to the boundaries of any zoning district on the Official Zoning Map, the following rules shall apply:
(Ord. No. 14-16, Amended 09/20/2016)
Uses of land which are not expressly permitted within the zoning districts as set forth in Part 3 of this Title are prohibited. The City shall be divided into zoning districts as follows:
(Ord. No. 14-16, Amended 09/20/2016)
A-E. Exclusive Agriculture. The purpose of this district is to promote agricultural production on lands with high quality soil types. The lands will usually not be suited for other urban uses because of location within a floodplain, or distance to other urban services. All agricultural uses are allowed in this zone. A cannabis cultivation facility is permitted with conditions (see SFMC §5.48.030(A) and (B)) R-R. Rural Residential. This district is similar in character to the A-E District, but parcel sizes are generally somewhat smaller and the soil types may be lower quality. Many of these areas within the Growth Management boundary will likely be rezoned and developed with higher density uses as utilities are extended and adequate streets are developed and/or widened. Other lands outside the Growth Management Boundary may eventually be converted to urban uses when a need is shown to expand that boundary.
(Ord. No. 12-09, Amended 08/04/2009) (Ord. No. 04-14, Amended 04/01/2014) (Ord. No. 21-18, Amended 12/11/2018)
R-1-80, R-1-60, R-1-40, R-1-30: These districts provide a rural residential environment within Spanish Fork that are characterized by large single-family lots conducive to animal rights as defined in §15.3.24.090(G). R-1-20, R-1-15, R-1-12: These districts provide low density single-family lots within Spanish Fork City. In the event a Master Planned Development is constructed within any of these zones, townhomes, condominiums, and twin homes are allowed, consistent with the requirements of the Master Planned Development section of Title 15, found in §15.3.20.080. R-1-9, R-1-8: These districts are to provide moderate density that is characterized by a variety of single-family housing types and lot sizes. In the event a Master Planned Development is constructed within either of these zones, townhomes, condominiums, and twin homes are allowed, consistent with the requirements of the Master Planned Development section of Title 15, found in §15.3.20.080. R-1-6: This district provides a residential environment that is medium density. In the event a Master Planned Development is constructed within this zone, townhomes, condominiums, duplexes, and twin homes are allowed, consistent with the requirements of the Master Planned Development section of Title 15, found in §15.3.20.080. Single-family homes on lots that are less than 6,000 square feet may also be permitted if a project is approved for the Infill Overlay Zone.
(Ord. No. 12-09, Amended 08/04/2009)
(Ord. No. 10-12, Amended 08/22/2012)
(Ord. No. 17-15, Amended 12/15/2015)
(Ord. No. 03-18, Amended 02/20/2018)
(Ord. No. 21-18, Amended 12/11/2018)(Ord. No. 12-19, Amended 06/18/2019)
This district is intended to promote high density residential uses. There will be a mix of dwelling types, with a larger proportion of twin homes, duplexes, and multi-family dwellings than single residence dwellings. Only individual lots for single-family homes will be approved as standard subdivisions. For a project to include twin homes, duplexes, and multi-family dwellings, a project must be approved as a Master Planned Development §15.3.20.080 or with the Infill Overlay Zone §15.3.16.035.
(Ord. No. 12-09, Amended 08/04/2009) (Ord. No. 17-15, Amended 12/15/2015) (Ord. No. 03-18, Amended 02/20/2018) (Ord. No. 21-18, Amended 12/11/2018)
This district is intended to allow high density residential uses. There will be a mix of home types in this zone and it is anticipated that the majority of the homes in this zone will be in multi-unit structures arranged in both townhome and stacked flat configurations. Only individual lots for single-family homes will be approved as standard subdivisions. For a project to include twin homes, duplexes, and multi-family dwellings, a project must be approved as a Master Planned Development §15.3.20.080.


(Ord, No. 05-16, Enacted 04/05/2016)
This district is intended to allow for the redevelopment of parcels located in the central part of the community. It is anticipated that the majority of the dwellings in this zone will be in multi-unit structures arranged primarily in a stacked configuration. The R-5 zone may only be utilized in the original plats of the City between 300 West, 1000 North, 800 East and 400 South. The R-5 zone is only available where properties have the Mixed Use, High Density Residential or Urban Density designations in the Comprehensive General Plan.


(Ord. No. 24-2023, Repealed 12/12/2023)
This district is intended to allow low intensity professional office uses on a scale consistent with residential areas. Strict architectural and Site Plan review will be required to ensure compatibility with adjoining residential areas. This district serves as a transition between more intense commercial areas and residential land uses, or is located along busier streets where limited office use is being introduced. Residential and office use of the same structure is allowed. Some limited commercial use may also be allowed in selective locations.
(Ord. No. 12-09, Amended 08/04/2009)
This district is intended to provide for general office development. It may serve as a transition between commercial uses and residential areas, or it may be designed as a concentration of similar uses intended as an employment center.
(Ord. No. 12-09, Amended 08/04/2009) (Ord. No. 03-18, Amended 02/20/2018) (Ord. No. 21-18, Amended 12/11/2018)
This district is intended to promote and maintain the character of a pedestrian oriented retail district along Main Street. Building orientation should strongly encourage pedestrian use by having buildings close to the street with frequent entrances to buildings, and significant amounts of glass. Drive-thru uses should be strongly discouraged.
(Ord. No. 12-09, Amended 08/04/2009) (Ord. No. 18-10, Amended 09/23/2010) (Ord. No. 06-11, Amended 04/20/2011) (Ord. No. 12-12, Amended 09/28/2012) (Ord. No. 21-18, Amended 12/11/2018)
This district is intended to provide small scale retail, personal and business services, and office uses to serve the immediate residential area. Individual businesses may not exceed 7,500 square feet and buildings may not exceed 10,000 square feet. Buildings and sites shall be designed to limit the size of parking fields and to have similar characteristics of surrounding neighborhoods. Particular focus and attention shall be given to building design to encourage compatibility with the surrounding homes.
(Ord. No. 12-09, Amended 08/04/2009)
This district is intended to provide for a wide range of commercial uses designed to serve neighborhood, community, and regional needs. Uses may be freestanding or integrated in a center.
(Ord. No. 12-09, Amended 08/04/2009)
(Ord. No. 02-10, Amended 02/16/2010)
(Ord. No. 21-18, Amended 12/11/2018)
(Ord. No. 14-19, Amended 07/09/2019)
This district is intended to provide retail uses, service-oriented businesses, offices, and restaurants in an integrated center. Each center shares common architecture, access, parking, signage, and landscape design. Centers will typically be five (5) acres in size and provide neighborhood or community level destination shopping while incorporating a design which enhances pedestrian orientation within the center.
(Ord. No. 12-09, Amended 08/04/2009)
(Ord. No. 15-15, Amended 09/15/2015)
This district is intended to provide controlled and compatible settings for a wide range of commercial and residential uses in the same area, uses designed to serve neighborhood, community, and regional needs. Uses may be freestanding or integrated in a center. Developments in this district will be designed towards pedestrians in mind; designs will have the character of an urban village; with high quality materials being used. The Planning Commission will review all Site Plans and subdivisions.
(Ord. No. 10-09, Amended 06/17/2009) (Ord. No. 12-09, Amended 08/04/2009) (Ord. No. 17-09, Amended 09/15/2009)
(Ord. No. 12-09, Amended 08/04/2009)
This district is intended to provide for employment related uses including light manufacturing, assembling, warehousing, and wholesale activities. Associated office and support commercial uses are allowed. Uses that emit significant amount of air, water, or noise pollution will not be allowed. Residential uses are not allowed.
A. Permitted Uses:
1. Adult Day Care.
2. Agriculture, including the Production of Food and Fiber Crops, Tree Farms, Grazing, and Animal Husbandry of Livestock, not including Feedlots.
3. Automotive Repair.
4. Automotive Service, Paint and Body Work, other consumer goods repair.
5. Caretaker's Residence.
6. Car Wash (self or full service).
7. Child Care Centers
8. Contractor Warehouse and Storage Yards.
9. Financial Institutions.
10. Funeral Homes.
11. Indoor Manufacturing, Assembly and Storage of finished products.
12. Indoor Pickleball Facility
13. Instructional Studios.
14. Lube Centers.
15. Lumber and Building Material Yards.
16. Municipal Facilities required for local service.
17. New and Used Automobile, Motorcycle, Boat, Truck, Recreational Vehicle Sales and Rental Facilities, and Repair Services associated with such facilities.
18. Office Supply, Copying, Printing businesses.
19. Offices.
20. Outdoor display areas.
21. Research, Development, and Testing services.
22. Restaurants.
23. Retail businesses.
24. Telecommunication Towers not taller than 60 feet.
25. Tire Care Centers.
26. Trade or Business schools.
27. Trucking and Warehousing.
28. Veterinary Offices for large animals and/or outside boarding of animals.
29. Wholesale Trade Businesses except explosives or automobile wrecking or salvage yards.Permitted Uses:
B. Uses Subject to Conditions:
1. Outdoor storage areas (see §15.3.24.090(I)).
2. Seasonal Sales and Special Events (as described in §15.3.24.050 et seq.).
3. Sexually Oriented businesses as defined in Chapter 5.28 of the Spanish Fork Municipal Code.
4. Cannabis Processing Facility (see §5.48.030).
C. Uses Subject to Conditional Use Permit (see§15.3.08.060).
1. Commercial Kennels, Animal Shelters, and Veterinary Hospitals with outdoor boarding or exercise facilities.
2. Drive-in Theaters.
3. Indoor Commercial Recreation Facilities.
4. Jails. for County and/or City.
5. Meat Processing Facilities.
6. Outdoor Commercial Recreation Facilities.
7. Publicly owned and operated compost facilities.
8. Publicly owned and operated recycling centers.
9. Rehabilitation Treatment Facilities.
10. Residential Treatment Centers (not owner occupied).
11. Shelter Care Facilities.
12. Telecommunication Towers taller than 60 feet.
(Ord. No. 12-09, Amended 08/04/2009) (Ord. No. 02-10, Amended 02/16/2010)
This district is intended to provide for employment related uses including light manufacturing, assembling, warehousing, and wholesale activities. Associated office and support commercial uses are allowed. Uses that emit moderate amounts of air, water, or noise pollution may be considered as conditional uses. Residential uses are not allowed.
(Ord. No. 12-09, Amended 08/04/2009) (Ord. No. 02-10, Amended 02/16/2010)
This district is intended to provide for employment related uses including heavy manufacturing, assembling, warehousing, and wholesale activities. Residential uses are not allowed.
(Ord. No. 07-06, Repealed 07/18/2006) (Ord. No. 02-10, Enacted 02/16/2010)
(Ord. No. 12-09, Repealed 08/04/2009)
This district is intended to provide for structures and uses that are owned, leased, or operated by a governmental entity for the purpose of providing governmental services to the community. Allowed uses will be necessary for the efficient function of the local community or may be desired services which contribute to the community's cultural or educational enrichment. Other allowed uses will be ancillary to a larger use that provides a direct governmental service to the community.
(Ord. No. 12-09, Amended 08/04/2009) (Ord. No. 02-10, Amended 02/16/2010) (Ord. No. 13-14, Amended 08/19/2014) (Ord. No. 21-18, Amended 12/11/2018)
This district is intended to provide for the development of improvements at the airport that will enhance the facility’s functionality and visual appeal. These standards are not intended to limit creativity but are expected to facilitate development that creates a distinct sense of place that is recognizable by aeronautical professionals and the community at large. The distinct sense of place will be created by following basic provisions concerning building materials, building orientation, building color and signage. Care shall be taken in this district to ensure compliance with FAA regulations.
(Ordinance 16-17; Created June 20, 2017)
This district is intended to provide for the extraction of earth products using surface mining methods while protecting the rights of neighboring properties and while protecting public facilities, such as roads, from unusual wear or damage. This is an interim use of the land, with the ultimate intent being to rehabilitate the site and convert the property to a use or uses compatible with the surrounding area. This district shall overlay other zoning district(s) where it is applied.
(Ord. No. 12-09, Amended 08/04/2009)
This district is intended to provide for the development of new Self Storage Warehouses and/or Recreational Vehicle Storage while protecting the City’s potential for economic growth by preserving sites that could potentially support retail, professional office, or manufacturing uses. This district shall overlay the Light Industrial I-1 zoning district where it is applied.
(Ord. No. 17-15, Enacted 12/15/2015)
This district is intended to provide an ability to develop properties within R-O Residential Office Zone, C-O Commercial Office Zone, C-2 General Commercial Zone, S-C Shopping Center Zone, C-UV Urban Village Commercial Zone, I-1 Light Industrial Zone, and B-P Business Park Zone which otherwise have a difficult time meeting the standards for those zones for any number of reasons, including, but not limited to, parking standards, landscaping standards, etc.
(Ord. No. 08-17, Enacted 03/07/2017) (Ord. No. 24-17, Amend 10/17/2017)
This district allows for the operation of facilities that sell, transport, store, process, and reclaim aggregate materials for use and reuse in the construction industry. The primary function of these operations are the transportation of aggregate and the maintenance of vehicles. The storage of aggregate material, both raw material and material that has been or will be recycled, and facilities to process that material, such as screens and crushers, are ancillary components of the operation.
This district is an alternative to developing property by strict adherence to standard zoning and development requirements, which may only be approved as a Zoning Map Amendment as provided in this section. The Master Planned Development (MDP) Overlay District is not a replacement for a standard subdivision but serves as an option. It is intended to provide an option in order to create residential neighborhoods that will increase in value over time by doing the following:
| ||
|
|
|
|
|
|
|
|
|
|
|
|
|
|
|
|
|
|
|
|
|
|
|
|
|
|
|
|
|
|
|
|
|
|
|
|
This district is intended to provide flexibility in development standards for small residential parcels. consisting of two (2) acres or less. that are difficult to develop under standard residential requirements. allowing them to be developed with modified standards. while maintaining high quality construction and maintaining the general character of the underlying zone. This zone may only be applied as an overlay zone in the R-1-6 and R-3 zones. Prior to approving the 1-F Zone, the City Council shall determine that the proposed development promotes the historic character of the neighborhood and conforms to the physical characteristics of the adjoining properties including architectural style, materials and size.


(Ord. No. 04-09, Amended 07/08/2009) (Ord. No. 02-15, Amended 02/03/2015) (Ord, No. 04-16, Amended 02/16/2016) (Ord, No. 05-16, Amended 04/05/2016) (Ord. No. 21-18, Amended 12/11/2018) (Ord. No. 03-19, Amended 01/22/2019)
Distinct designs. Development shall include a variety of home styles to ensure a diverse and interesting streetscape. Neighborhoods that have repetitive residential structures constructed along the same street are not allowed. In order to ensure that the neighborhood is non- repetitive, the same street facing elevation shall not be built on adjacent lots on the same street or on lots directly or diagonally across the street from one another. Different elevations shall be characterized by elements such as, but not limited to, distinct footprints, rooflines, cladding materials or architectural features which contribute to home designs that are easily distinguishable from other home designs along the same street. . Parking. Developments shall provide at least two and a half (2.5) parking spaces per home in the development. A two-car garage for each single-family residence is required. Two and three-unit structures must have at least a one-car attached or detached garage. One-car garages shall be at least 12 by 20 feet in size, two-car garages shall be at least 20 by 20 feet in size. Doors for no more than one garage may be visible per residential structure, per street. Driveways located between garage doors and street facing property lines shall be at least 20 feet deep.
Exterior materials. Homes shall be clad in masonry, or masonry-based materials or a chemically-treated, wood-based, nail-on, lap siding that has at least a 50-year warranty. The City Council may grant a waiver of this requirement based upon superior architectural design plans which involve other materials.
| Minimum Finished Floor Area | ||
| Minimum Lot Size and Multi-Family | One story | Multi-Level |
| 80,000 sq. ft. | 1,600 sq ft. | 2,400 sq. ft. |
60,000 sq. ft | 1,600 sq ft. | 2,400 sq. ft. |
| 40,000 sq. ft. | 1,600 sq. ft. | 2,400 sq. ft. |
| 30,000 sq. ft. | 1,500 sq. ft. | 2,200 sq. ft. |
| 20,000 sq. ft | 1,500 sq. ft. | 2.200 sq. ft. |
| 15,000 sq. ft | 1,500 sq. ft. | 2,200 sq. ft. |
| 12,000 sq. ft. | 1,400 sq. ft. | 2,000 sq. ft. |
| 9,000 sq. ft. | 1,300 sq. ft. | 1,600 sq. ft. |
| 8,000 sq. ft. | 1,200 sq. ft. | 1,500 sq. ft. |
| 6,000 sq. ft. | 1,100 sq. ft. | 1,400 sq. ft. |
| Multi-Family | 1,000 sq. ft. (one-level) | 1,200 sq. ft. (multi-level) |
(Ord. No. 04-12, Enacted 04/17/2012) (Ord. No. 04-17, Amended 02/07/2017)
Billboards are addressed in Spanish Fork Municipal Code §5.36.070.
(Ord. No. 10-12, Amended 08/22/2012)
(Ord. No. 04-14, Amended 04/01/2014)
(Ord. No. 14-16, Amended 09/20/2016)
(Ord. No. 09-19, Amended 05/07/2019)
Ord 05-2023 Repealed 04/18/2023 and put in 15.3.20.080 Master Planned Development Overlay District
(Ord. No. 07-06, Amended 07/18/2006) (Ord. No. 08-09, Enacted 05/19/2009) (Ord. No. 11-13, Amended 07/16/2013) (Ord. No. 15-13, Repealed; Re-enacted 09/03/2013) (Ord. No. 04-14, Amended 04/01/2013) (Ord. No. 15-15, Amended 09/15/2015) (Ord. No. 01-17, Repealed 01/03/2017) (Ord. No. 03-19, Amended 01/22/2019)
(Ord. 07-06, Amended 07/18/2006)
Temporary sales or display of goods or special events are allowed only if they are related to a particular seasonal, cultural, traditional, or community activity or event for a period not to exceed 60 calendar days, as determined by the City Planner. In making a determination, the City Planner shall consider the following criteria:
The sale or special event possesses a valid City Business License.
(Ord. No. 14-16, Amended 09/20/2016)
(Ord. No. 14-16, Amended 09/20/2016)
Sexually oriented businesses are permitted only in the I-1 Light Industrial Zone north of 1600 North and west of Interstate 15, with the following restrictions:
For purposes of this section, “park” means public land within the City which has been designated for park or recreational activities, including but not limited to, a Child Care Center, a park, playground, nature trail, swimming pool, reservoir, athletic field, basketball or tennis court, open space, wilderness areas, or similar public land and related facilities such as parking lots, playgrounds, and ball fields, which are under the control, operation, or management of the City or other governmental authorities.
Accessory Buildings, Structures, or Satellite Earth Stations.
Swimming Pools
Yard/Garage Sales
Irregular Lots
Accessory Dwelling Units (ADUs)
Awnings, Carports or Covered Decks
Animals
Wind Turbines (WT)
Outdoor Storage Areas
Public Rights-of-Way
Temporary Uses
Amateur Radio Antennas



B. Swimming Pools:
1. Swimming Pools and Jacuzzis shall comply with the following setbacks:
a. Minimum setback to a front property line is thirty (30) feet; however, they shall also be located behind the front wall plane of the principal structure.
b. Minimum setbacks to interior side or rear property lines are five (5) feet.
c. Minimum setback to a corner property line is ten (10) feet.
2. Enclosures or coverings shall comply with accessory structure regulations.
3. Swimming Pools shall not be located in municipal or public utility easements. Setback requirements from property lines must still be met.
4. Swimming Pools shall comply with applicable Building Code safety regulations.
C. Yard/Garage Sales:
1. Yard sales are permitted for no more than three (3) events of 48 hours or less within a 12-month period at the same residence or street address. No signage related to such events shall be placed in the public right-of-way (e.g. no placement of signs on telephone and light poles).
D. Irregular Lots:
1. All dwelling structures and other main buildings located on an irregular lot shall be set back an average of 20 feet from the rear property line provided that no portion of the building is closer than 15 feet to the property line.
E. Accessory Dwelling Units (ADUs):
1. This sub-section is established to provide regulations for ADUs.
2. Requirements for Approval. A building permit may only be issued for ADUs provided that the following requirements are met:
a. The property must be located in the R-3, R-1-6, R-1-8, R-1-9, R-1-12 or R-1-15, R-1-20, R-1-30, R-1-40, R-1-60, R-1-80 or R-R zones.
b. The owner of the property must reside on the property. Exceptions shall be permitted if the property owner applies to have the occupancy requirement suspended, if the owner has resided on the property for at least one (1) year and if any of the following situations exist:
1. The owner has a bona fide, temporary absence of three (3) years or less for activities such as temporary job assignments, sabbaticals, or voluntary service (indefinite periods of absence from the dwelling shall not qualify for this suspension).
2. The owner is placed in a hospital, nursing home, assisted living facility or other similar facility.
c. Only one (1) ADU shall be created on a parcel. The ADU may only be located within a single-family dwelling or in an Accessory Structure. Accessory Structures that house ADUs shall be constructed as permanent structures. A Recreational Vehicle is not considered an accessory structure and may not be used as an ADU.
d. ADUs are only permitted on lots 6,000 square feet or larger.
e. The property must have a total of three (3) parking spaces for the primary single-family dwelling with an internal ADU and four (4) parking spaces for a primary single-family dwelling with an external or detached ADU, which meet the criteria provided in section §15.4.16.120. i.e., two (2) parking spaces are required for the primary single-family dwelling and one (1) parking space for the internal ADU. The parking spaces for the ADU may not be provided in a tandem arrangement.
f. The ADU must be registered with the City Community Development Department. Any fees required for registration shall be defined in the City's Annual Budget.
g. The ADU shall meet all applicable building and fire codes.
F. Awnings, Carports or Covered Decks:
1. Awnings or structures that are open on three (3) sides on the rear portion of a home may extend within 15 feet of the rear property line.
2. Awnings or other structures that are open on three (3) sides must be setback at least five (5) feet from the side property line.
3. A building permit must be obtained for all awnings.
G. Animals:
1. Animals are allowed in the A-E, R-R, I-1, and I-2 zoning districts with no restrictions on the maximum number. Animals are allowed in all other zoning districts subject to the following regulations:
a. The portion of the property on which the animals, except for household pets, are kept must be at least one-half (1/2) acre in size. The chart following this section sets forth the only types of animals that may be kept and the maximum number of animals which may be kept per each one-half (1/2) acre of property. The numbers are not cumulative. A maximum of one (1) species precludes any other species. For example, on a half-acre (1/2) two (2) horses may be kept, or four (4) sheep, or one (1) horse and two (2) sheep, but two (2) horses and four (4) sheep are not allowed.
b. All requirements set forth in Title 6, Animals, must be met. The keeping of chickens and potbellied pigs in any zone other than the A-E, R-R, I-1, or I-2 is governed by Title 6.
c. No animal shall be kept in a residential zone for purpose of commercial production.
| Animal | Maximum # Per 1/2 Acre |
| Cattle | 2 |
| Horses | 2 |
| Sheep, Goats, Llamas, Ostriches | 4 |
| Rabbits | 10 |
| Pigeons | 12 |
| Ducks, Geese | 8 |
| Game Birds * | 8 |
| *with appropriate permits |
H. Wind Turbines (WT):
1. It is the purpose of this section to promote the safe, effective, and efficient use of large wind energy systems installed to provide electricity to utilities and to promote the adoption of renewable energy resources to reduce dependence on fossil fuel power generation.
a. Requirements:
1. Minimum parcel size: A large wind energy system consisting of one (1) tower must be located on a parcel that is a minimum of five (5) acres in size. An additional acre of property is required for each additional tower.
2. Onsite structures may be located up to the foundation of the tower.
3. Setback from a residential zone or use: The tower base must be setback a minimum of 500 feet from residential zoning districts.
4. Distance from rights-of-way and property lines: None; but all tower bases must be located on leased or owned property. The blade sweep cannot encroach upon adjoining properties or rights-of-way without easements providing for their encroachment. The easement must be a recorded document.
5. Height: Tower height is not to exceed 270 feet. Provided that, in all cases, the system shall comply with all applicable Federal Aviation Administration (FAA) requirements.
6. Height of Blade (tip at low point of blade sweep from ground): No closer than 50 feet.
7. Braking Device: All WT devices shall have braking systems when winds reach speeds in excess of 65 miles per hour.
8. Sign: One (1) project identification warning sign is permitted containing a telephone number for emergency calls, no larger than 16 square feet in size.
9. Color/Finish: white or other non-reflective color.
10. Interference with Broadcast Signals: The system shall not create electromagnetic interference and shall be filtered and/or shielded to prevent interference with broadcast signals.
11. Compliance with International Building Code (IBC): Building Permit applications for large wind energy systems shall be accompanied by standard drawings of the WT structure, including the tower, base, and footings. An engineering analysis of the tower and WT showing compliance with the Building Code and certified by a professional engineer licensed in the state of Utah shall also be submitted.
12. Compliance with FAA Regulations: Large wind energy systems must comply with applicable FAA regulations, including any necessary approvals for installations close to airports.
13. Utility Notification: A letter shall be provided from any interconnecting utility companies confirming approval for any interconnection.
14. Zoning Districts: Large wind energy systems are permitted only in the I-3 Heavy Industrial zoning district.
15. Wind Study: A wind or feasibility study must be conducted and recommend a specific location for the WT. The study must also recommend an optimal height for the WT and if the location is feasible for a WT.
16. The tower shall not be climbable from the exterior.
I. Outdoor Storage Areas. The following conditions must be met:
1. The storage area must be paved with asphalt or concrete or be covered with gravel. In situations where gravel is utilized, no less than four (4) inches of untreated base course shall be installed. Additional improvements may be required by the City Engineer in accordance with the findings of a site-specific geotechnical report. Where a paving material other than asphalt or concrete is utilized, a drive apron shall be installed at all points of vehicular access. The drive apron shall be 26 feet wide and no less than 60 feet long.
2. The outdoor storage area must be screened from surrounding properties with a six (6) foot tall Wall except where the adjoining property is a railroad right-of-way, Interstate 15 or SR-6 adjacent to industrial zones. Where the outdoor storage area abuts a public street, a 10-foot-wide landscaped planter shall be installed between the Wall and the sidewalk or right-of-way. Landscaping shall be installed and maintained in accordance to the requirements found in §15.4.16.130.
3. For outdoor storage areas located in the Industrial 2 or 3 zones, stackable concrete blocks may be used as the required screen for outdoor storage areas unless the screen would be placed adjacent to a public street. When stackable concrete blocks are used to provide a required screen for outdoor storage areas, they shall include a wall cap and be painted or stained in the same manner as other walls as described in the City's construction standards. Where the screen is required adjacent to a public street, the stackable concrete blocks shall not be allowed but instead a wall as described in Title 15 and further defined in the City's construction standards is required.
4. Lighting shall be provided in outdoor storage areas. A photometric lighting plan shall be submitted with the Site Plan application. The lighting plan shall demonstrate the capacity of the proposed lighting to uniformly illuminate the storage area without creating undue spillover onto surrounding properties.
5. Material kept in an outdoor storage area cannot be stacked or piled to a height that exceeds 12 feet.
J. Public Rights-of-Way:
1. It is not permitted to store or display merchandise or any other material, excepting those signs permitted in §5.36.050(I), within any public right-of-way. In certain locations designated by Spanish Fork City, outdoor seating may be permitted in accordance with restrictions provided in the City’s Development Standards.
K. Temporary Uses:
1. Certain uses may be permitted on a temporary basis in Zoning Districts where they otherwise are not allowed. Express written approval must be provided by the Community Development Director prior to the commencement of a Temporary Use. Temporary Uses will be limited to those identified in a particular Zoning District and will be subject to conditions. The specific conditions associated with each Temporary Use will address the approved duration of the use, the precise nature of the use, the scope of the use and any others deemed appropriate for a particular situation. Business operating approved Temporary Uses must maintain a valid Spanish Fork City Business License.
L. Amateur Radio Antennas:
1.This section shall apply to amateur radio, also known as HAM radio, antennas and support structures.
2. General Regulations. Amateur radio antennas and support structures are allowed as a permitted use in all zones up to a height of forty-five (45) feet, subject to the conditions of this section. All amateur radio antennas and support structures shall comply with the following requirements.
a. All facilities shall comply with any pertinent regulations of the Federal Communications Commission (FCC) and the Federal Aviation Administration (FAA).
b. A building permit is required for any antenna and support structure with a combined height over twelve (12) feet. The design and construction of the antenna, as demonstrated by manufacturer specifications or by certification of a design professional (architect, professional engineer, or structural engineer) and support structure must be able to withstand wind loads of 80 mph and greater.
c. No more than one amateur radio support structure per lot or parcel may be installed. A support structure may only be located in the rear yard of a home or primary structure. A roof-mounted antenna shall be allowed provided that the height of the antenna and support structure does not exceed twelve (12) feet above the roof.
d. Setbacks for all amateur radio support structures shall be at least twenty feet (20’) from neighboring property lines and a minimum of thirty feet (30’) from any public right of way.
e. Support structures and all antennas, including when such antennas are fully extended, shall be located entirely upon and within the owner’s private property. No part of a support structure or antenna may extend beyond the boundaries of the lot or parcel upon which it is located, including into the right-of-way of any public or private street. No part of an antenna or support structure may be closer than 15 feet from an electric distribution conductor or 30 feet from an electric transmission conductor.
f. A support structure shall be composed of non-reflective galvanized steel or aluminum and shall be a neutral color or a color to match the background against which it will be most commonly seen.
g. Antennas are to be installed on a building or property in the least conspicuous location possible.
h. A support structure in a residential zone may not make use of guy wires.
i. Antennas shall be retracted, lowered, nested, or otherwise moved to a resting position when they are not being actively used for transmitting and receiving signals.
3. Conditional Use for Additional Height, Lesser Setbacks. The City desires to provide reasonable accommodations for antennas and support structures, where appropriate, to ensure the standards contained in this section represent the minimum practicable regulation to accomplish the City’s legitimate safety and aesthetic purposes. A conditional use permit shall be granted by the Planning Commission to allow amateur radio antennas and support structures to exceed 45 feet in height or to be setback less than the distance required by this section if it finds that the additional height or lesser setback will not create any negative impact or if reasonable conditions are proposed, or can be imposed, to mitigate the reasonably anticipated detrimental effects of the additional height or lesser setback in accordance with applicable standards. It is the intent of the City to reasonably accommodate antennas and support structures to the greatest extent practicable without negatively impacting public safety or the aesthetic quality of the neighborhood in which they are located. Antennas and support structures will generally not be allowed at a greater height or lesser setback to the extent the greater height or lesser setback negatively impacts the public safety or aesthetics of the neighborhood in which they are located. In determining whether amateur radio antennas and support structures should be allowed to exceed 45 feet in height or have a lesser setback, the Planning Commission shall consider the following factors:
a. The potential negative impact on public safety, especially the safety of life and property in the public rights-of-way or on adjacent properties.
b. The potential negative impact that the structure will have on the views of properties in the neighborhood. Special consideration shall be given to the impact on the views of attractive natural features such as the Wasatch Mountains, the Spanish Fork River bottoms, and Utah Lake.
c. The potential negative impact that the structure will have on the overall aesthetic quality of the neighborhood in which the structure is located.
d. The potential impact the structure may have on property values in the neighborhood in which the structure is located as demonstrated by a market analysis or appraisal. Speculative testimony is insufficient to establish any impact upon property values.
e. The need of the owner/operator for an antenna and support structure in excess of 45 feet or for a lesser setback distance.
f. The extent to which any reasonably anticipated detrimental effects of the structure can be mitigated. Factors that may reduce the negative impact that a structure will have on the aesthetic quality of a neighborhood and which may be made a condition(s) for the allowance of a height greater than 45 feet or lesser setback include but are not limited to the following:
1. For additional height, setbacks from adjoining property that significantly exceed the required setbacks listed in subsection (1)(d) above.
2. The current existence and use of trees or other means to screen or camouflage the structure.
3. The use of a retractable support structure, which is retracted when not in use or which is fully extended only during limited hours so long as the antenna, when extended, does not cross property lines.
4. The location of a support structure adjacent to land that is undeveloped and not likely to be developed due to topography or other characteristics. Streets may not be considered as undeveloped land.
5. The location of a support structure in or adjacent to commercial property, churches, schools, parks, or similar property such that the support structure will not unreasonably impair the views of residential property owners.
6. Any other factor that could reasonably mitigate the negative impact of the structure.
g. The existence of one or more of the conditions listed above does not create a presumption that the negative impacts of an antenna or antenna support structure are adequately mitigated.
4. Abandonment. An antenna or support structure shall be deemed to be abandoned and must be removed if the antenna is not used for a period of two (2) years or more. However, this two-year period shall not run during any time when the owner is away on a temporary leave of absence due to military service, a volunteer service assignment, ecclesiastical assignment, or other similar absence.
M. Impound Yard. The following conditions must be met:
1. The yard must be paved with asphalt or concrete or be covered with gravel. In situations where gravel is utilized, no less than found (4) inches of untreated base course shall be installed. Additional improvements may be required by the City Engineer in accordance with the findings of a site-specific geotechnical report. Where a paving material other than asphalt or concrete is utilized, a drive apron shall be installed at all points of vehicular access. The drive apron shall be paved with concrete or asphalt 26 feet wide and no less than 60 feet long and a 26 foot-wide all-weather driveway shall be constructed from the end of the apron to the Impound Yard.
2. When the yard is located within 100 feet of a public right-of-way, a six (6) foot tall Wall shall be constructed between the yard and the public right-of-way. Exceptions to the Wall requirement may be granted by the Community Development Department where the public right-of -way is interstate 15 and a determination has been made that the yard is not visible from Interstate 15. When the yard abuts a public right-of-way, except for Interstate 15, a 10-foot-wide landscaped planter shall be installed between the Wall and the sidewalk or right-of-way. Landscaping shall be installed and maintained in accordance with the requirements found in §15.4.16.130.
3. Lighting shall be provided in impound Yards. A photometric lighting plan shall be submitted with the Business License application. The lighting plan shall demonstrate the capacity of the proposed lighting to uniformly illuminate the storage area without creating undue spillover onto surrounding properties.
4. Impound Yards shall be no larger than 30,000 square feet.
(Ord. No. 08-05, Enacted 06/07/2005) (Ord. No. 02-10, Amended 02/16/2010) (Ord. No. 23-10, Amended 11/16/2010) (Ord. No. 06-11, Enacted 04/19/2011)(Ord. No. 05-12, Amended 04/17/2012)(Ord. No. 10-12, Amended 08/21/2012)(Ord. No. 11-13, Amended 07/16/2013)(Ord. No. 04-14, Amended 04/01/2014)(Ord. No. 02-15, Amended 02/03/2015)(Ord. No. 11-15, Amended 06/16/2015)(Ord. No. 15-15, Amended 09/15/2015)(Ord. No. 17-15, Amended 12/15/2015)(Ord. No. 04-17, Amended 02/07/2017)(Ord. No. 04-17, Amended 02/07/2017)(Ord. No. 06-19, Amended 04/16/2019)(Ord. No. 12-19, Amended 06/18/2019)
For the purposes of this Chapter, the following words and phrases shall have the meanings respectively ascribed to them below:
“Advisory Board” means the Utah County Agriculture Protection Area Advisory Board.
“Agriculture production” means production for commercial purposes of crops, livestock, and livestock products and includes the processing or retail marketing of any crops, livestock, and livestock products when more than 50% of the processed or merchandised products are produced by the farm operator. Agriculture production includes Agritainment as defined in Title 15, including corn mazes, hay rides, petting zoos, farm stands, and farmer's markets.
“Agriculture protection area” means a geographic area within Spanish Fork City created under the authority of Chapter 41, Title 17, Utah Code Annotated, 1953 as amended, and of this Chapter, that is granted the specific legal protections contained in Chapter 41, Title 17, Utah Code Annotated, 1953 as amended.
“Contiguous” means touching along a common side or so close in proximity as to be separated only by the width of a road, canal, railroad track, easement, or similar right-of-way.
“Crops, livestock, and livestock products” includes: (1) land devoted to the raising of useful plants and animals with a reasonable expectation of profit, including: (A) forages and sod crops; (B) grains and feed crops; (C) livestock as defined in Subsection 59-2-102(20), Utah Code Annotated, 1953, as amended; (D) trees and fruits; or (E) vegetables, nursery, floral and ornamental stock; or (2) land devoted to and meeting the requirements and qualifications for payments or other compensation under a crop-land retirement program with an agency of the state or federal government.
“Planning Commission” means the Spanish Fork Planning Commission.
“Political subdivision” means a county, city, town, school district, or special district.
“Proposal sponsors” means the owners of land in agricultural production who are sponsoring the proposal for creating an agriculture protection area.
“State agency” means each department, commission, board, council, agency, institution, officer, corporation, fund, division, office, committee, authority, laboratory, library, unit, bureau, panel, or other administrative unit of the state.
“Unincorporated” means not within a city or town.
Spanish Fork City supports the establishment of agriculture protection areas within the limitations established by this Chapter to protect and sustain production agriculture. Furthermore, Spanish Fork City recognizes that the adoption of an agriculture protection area will not restrict a citizen’s ability to file a complaint about an agriculture practice. Rather, Spanish Fork City hopes to protect agricultural land owners from civil lawsuits and criminal prosecution as long as the owner employs safe, sound, and reasonable agriculture practices.
After receipt of the written reports from the Advisory Board and Planning Commission, or after the 45 days has expired, whichever is earlier, the City Council shall:
In evaluating a proposal and in determining whether or not to create or recommend the creation of an agriculture protection area, the Advisory Board, Planning Commission, and City Council shall apply the following criteria:
No single criterion is necessary or sufficient for the establishment of an agriculture protection area. Rather, the criteria in this section are for evaluation and consideration by the Advisory Board, Planning Commission, and the City Council.
| Table 1 - Residential Development Standards | ||||||||||
| District | Maximum Density Per Acre | Minimum lot dimensions | Minimum Setback | Max Building Height5 | ||||||
| Lot Area | Width | Depth | Front6 | Rear7 | Side | Corner | Principal Building | Accessory Building1 | ||
| A-E | N/A | 40 acres | 400' | 400' | 50' | 50' | 50' | 50' | 35' | 35' |
| R-R | N/A | 5 acres | 200' | 200' | 50' | 50' | 25' | 50' | 35' | 35' |
| R-1-80 | .4 units | 80,000 sf | 180' | 200' | 40' | 80' | 20' | 30' | 35' | 20' |
| R-1-60 | .53 units | 60,000 sf | 160' | 200' | 40' | 60' | 20' | 30' | 35' | 20' |
| R-1-40 | .8 units | 40,000 sf | 140' | 200' | 30' | 40' | 20' | 30' | 35' | 20' |
| R-1-30 | 1.07 units | 30,000 sf | 130' | 150' | 40' | 40' | 15' | 25' | 35' | 20' |
| R-1-20 | 1.60 units | 20,000 sf | 125' | 150' | 30' | 30' | 15' | 25' | 35' | 20' |
| R-1-15 | 2.13 units | 15,000 sf | 100' | 125' | 20-25'2 | 25' | 10' | 15-25'4 | 35' | 20' |
| R-1-12 | 2.67 units | 12,000 sf | 100' | 100' | 20-25'2 | 25' | 10' | 15-25'4 | 35' | 20' |
| R-1-9 | 3.56 units | 9,000 sf | 85' | 90' | 15-25'2 | 25' | 10' | 15-25'4 | 35' | 20' |
| R-1-8 | 4 units | 8,000 sf | 75' | 90' | 15-25'2 | 25' | 10' | 15-25'4 | 35' | 20' |
| R-1-6 | 5.34 units | 6,000 sf | 50' | 90' | 15-25'2 | 25' | 5-10'3 | 15-25'4 | 35' | 20' |
| R-3 | 12 units | 6,000 sf | 50' | 90' | 15-25'2 | 25' | 5-10'3 | 15-25'4 | 35' | 20' |
| R-4 | 20 units | 6,000 sf | 50' | 90' | 15-25'2 | 25' | 5-10'3 | 15-25'4 | 50' | 20' |
| R-5 | 18 units | 6,000 sf | 50' | 90' | 10-20'8 | 15' | 15' | 15' | 40' | 20' |
| R-0 | N/A | 6.000 sf | 50' | 90' | 115-25'2 | 25' | 5-10'3 | 15-25'4 | 35' | 20' |
| ||||||||||
| Table 2 - Commercial and Industrial Development Standards | |||||||
| District | Minimum Setback1 | Max Building Height | |||||
| Front | Rear | Side | Corner | Principal Building | Accessory Building1 | ||
| C-O | 15'4 -25' | 0-25' | 0-10' | 10'5-15' | 30' | 20' | |
| C-UV | 25' | 0-25' | 0-20' | 15' | 35'-48'1 | 20' | |
| C-D | 0' (10' max) | 0-25' | 0' | 0' (10' max) | 48' | 20' | |
| C-1 | 25' | 0-25' | 0-20' | 0-15' | 30' | 20' | |
| C-2 | 15'4 -25' | 0-25' | 0-20' | 10'5-15' | 35-48'2 | 20-25'2 | |
| S-C | 25' | 0-25' | 0-20' | 15' | 35-60'2 | 20' | |
| B-P | 25' | 0-25' | 0-25' | 15' | 120' | 20' | |
| I-1 | 25' | 0-25' | 0-25' | 15' | None | None | |
| I-2 | 50' | 50' | 50' | 50' | None | None | |
| |||||||