17 - OFF-STREET PARKING REGULATIONS17
(REV 10-07, REV 04-08, REV 06-13, REV 03-14, REV 08-14, ORD 17-09, ORD 18-15, ORD 19-02, ORD 21-06)
The purpose of this Chapter is to reduce street congestion and traffic hazards in the City by incorporating adequate, attractively designed facilities for off-street parking and loading as an integral part of every use of land in the City.
There shall be provided at the time of erection of any building or at the time any main building is enlarged or increased in capacity, minimum off-street parking space with adequate provisions of ingress and egress by standard sized automobiles as provided in this Chapter.
All parking facilities shall satisfy the following minimum standards for design of parking stall and construction standards:
A.
Parking Space Design Standards. Each parking space shall be independently accessible and shall have the following basic design:
1.
Standard Parking Space. Each standard parking space shall consist of a rectangular area not less than ten (10') feet wide and twenty (20') feet in length unless otherwise shown in Table 17.1.
2.
Vertical Clearance. Each space shall have a vertical clearance of not less than seven and one-half (7 1/2') feet.
3.
Accessible Vehicle Spaces. Car parking spaces shall be eight (8') feet wide minimum and twenty (20') feet in length and van parking spaces shall be eleven (11') feet wide minimum, shall be marked to define the width, and shall have an adjacent access aisle of five (5') feet wide. Spaces shall be located near and convenient to a level or ramp entrance. Accessible parking spaces shall be signed and restricted for use by disabled persons only. Access Aisles shall be marked to discourage parking in them.
Exception: Van parking spaces shall be permitted to be eight (8') feet wide minimum where the access aisle is eight (8') feet wide minimum.
B.
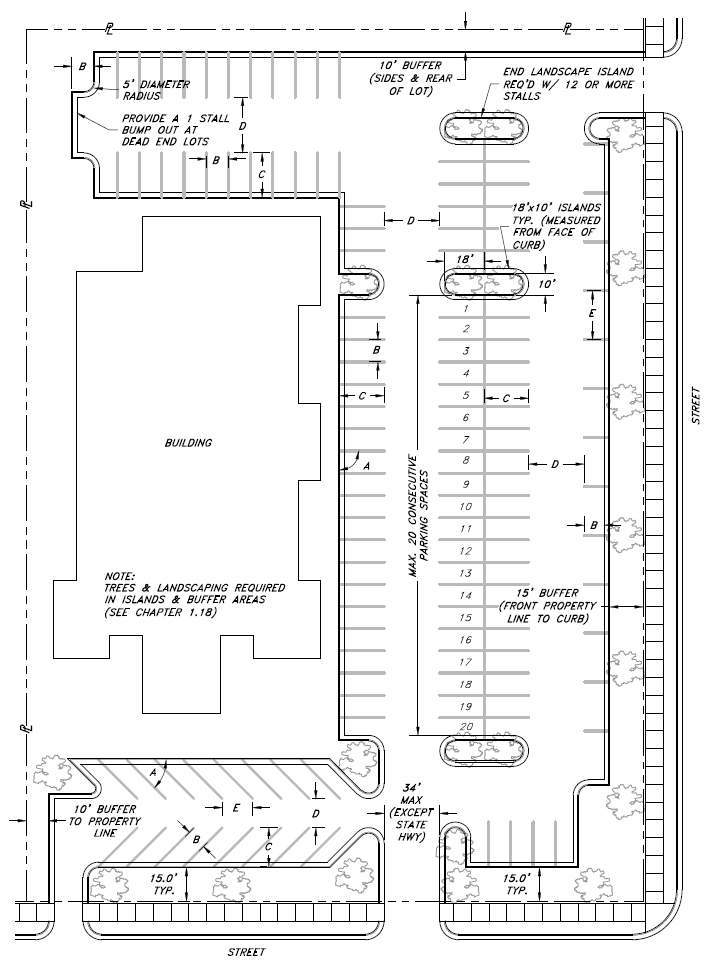
Parking Facility Design. Each parking space shall have adequate drives, aisles, and turning and maneuvering areas for access and usability. Minimum parking design standards are defined in Table 17.1 and illustrated in Diagram 17.1.
C.
Street Improvements. Streets fronting off-street parking lot(s) shall be improved in accordance with Title II and Title III.
Note: One-way aisles shall alternate direction, or otherwise provide logical vehicular circulation as approved by the Zoning Administrator, and shall not dead-end if greater than sixty (60') feet in length.
DIAGRAM 17.1 ILLUSTRATES FACILITY MEASUREMENTS AS REQUIRED BY TABLE 17.1
D.
All parking facilities shall be hard surfaced with asphalt, concrete or binder pavement materials. The materials shall be capable of handling the anticipated size and weight of vehicles, including public safety vehicles as approved by the City Engineer.
E.
Each parking lot shall be surrounded by a concrete curb, or other border approved by the City Engineer to ensure the life of the surface and to limit the access to approved ingress and egress.
A.
Except for Single-Family Dwellings and Twin Home Dwellings, direct access to each parking space shall be from a parking lot access and not directly from a public street. All parking spaces shall have independent access not blocked by another parking space or other obstacle. Parking shall be designed to avoid backing onto a public street; Except for Single-Family Dwellings and Twin Home Dwellings and locations where the size or shape of the parcel is such that development would be precluded otherwise.
Adequate ingress and egress to and from all uses shall be provided as follows:
A.
Single-Family Dwelling and Twin Home Dwellings. Driveways for Single-Family Dwelling and Twin Home Dwellings shall be as follows:
1.
No more than two (2) driveways shall be used for each one hundred (100') feet of frontage on any street. No two (2) of said driveways shall be closer to each other than twelve (12') feet.
2.
On corner lots no driveway shall be closer to a street intersection from property line than twenty (20') feet.
B.
Commercial, Industrial, Institutional, and Multi-Family Dwellings. Driveways for commercial, industrial, institutional, and multi-family dwellings shall be as follows:
1.
No more than one (1) driveway shall be used for each eighty (80') feet of frontage on any street. And no driveway shall be closer to a side property line than six (6') feet. In cases where frontage is limited property owners are encouraged to share a common ingress and egress straddling the common property line.
2.
Each driveway shall be not more than forty (40') feet wide, measured at right angles to the centerline of the driveway, except as increased by permissible curb return radii. The entire flare of any return radius shall fall within the right-of-way.
3.
No driveway shall be closer to a street intersection than one hundred (100') feet. Depending upon the classification of the roads comprising the intersection and other factors the City Engineer may reduce the distance.
4.
On State roads the City requires written evidence of UDOT consent to grant ingress and egress.
The minimum number of off-street parking spaces shall be as follows:
1 Note: Multiple Uses. When a development contains multiple uses, more than one (1) parking requirement may be applied.
2 Note: Fraction When Calculating. Any fraction obtained when calculating the parking requirement shall be required to add one (1) additional parking stall.
The Development Review Committee may approve the joint use of a parking lot or facility provided that the applicant can show that conflict between the different users can be effectively eliminated. For instance, willing parties such as a church and a commercial business may share parking facilities if typical heavy use parking times allow. A copy of the recorded perpetual easement shall be provided to the Zoning Administrator.
All parking lot light fixtures shall be installed to diminish light glare from adversely affecting adjacent properties. Pole mounted fixtures are required in lots or along roads. Lighting will be approved as to how adequately it provides for the health and safety of citizens. Design and location of standards and fixtures shall be specified on a Site Plan.
Parking lots shall follow the requirements of Chapter 1.18 Landscaping, Buffering and Fencing Regulations. Automobile/Implement Sales Area (See Definition Chapter 1.03) shall not be considered Parking Lots and shall be exempt from Landscape Island requirements.
A.
Less than twelve (12) Parking Stalls. Parking lots with twelve (12) total parking spaces or less are not required to install landscape islands.
B.
More than twelve (12) Parking Stalls, and no more than twenty (20) Total Parking Stalls. Parking lots with thirteen (13) total parking stalls or more, and no more than twenty (20) total parking stalls shall be required to provide landscape islands at the end of each parking row as described in Sections 1.17.045 C 1 and 2.
C.
More than twenty (20) Parking Stalls. Parking lots with more than twenty (20) parking stalls shall be designed with landscaped islands as follows:
1.
Islands on Single Rows of Parking. On single rows of parking there shall be one (1) eighteen (18') foot long by ten (10') foot wide landscaped island a minimum of every twenty (20) stalls, plus one (1) eighteen (18') foot long by ten (10') foot wide landscape island at each end of the parking rows. Islands shall be landscaped with a minimum of one (1) deciduous tree having a minimum trunk size of two (2") inches in caliper measured at ground level when planted and include other landscaping improvements such as grass, weed barriers, mulch, or ground covers. Landscape islands shall be irrigated to minimize water loss. No hard surface improvements such as concrete or asphalt are allowed within any landscaped islands.
2.
Islands on Doubled Rows of Parking. On doubled rows of parking stalls, there shall be one (1) thirty-six (36') foot long by ten (10') foot wide landscaped island on each end of the parking rows, plus one (1) thirty-six (36') foot long by ten (10') foot wide landscaped island to be placed at minimum of every twenty (20) parking stalls. Each island on doubled parking rows shall include a minimum of two (2) deciduous trees having a minimum trunk size of two (2") inches in caliper measured at ground level when planted and include other landscaping improvements such as grass, weed barriers, mulch, or ground covers. Landscape islands shall be irrigated to minimize water loss. No hard surface improvements such as concrete or asphalt are allowed within any landscaped islands.
Parking lots shall be designed to comply with Section 1.18.035 Required Buffer Widths and Improvements.
Storm Water generated from parking lots are required to comply with Title III General Public Works Construction Standards and Specifications Chapter 3.20 Storm Water Hydrology.
Every parcel of land used as a public or private parking lot shall be developed and maintained in accordance with the following requirements:
A.
Surfacing. Each off-street parking lot shall be surfaced with an asphalt or concrete or other binder pavement and permanently maintained so as to provide a dustless surface. Potholes, cracks, and other damage to the surface shall be repaired in a timely manner.
B.
Maintenance. All parking facilities shall be maintained and kept free of garbage and debris. Striping of parking stalls shall be kept in a manner that allows each stall to be identified. Parking lot landscaping shall be maintained.
17 - OFF-STREET PARKING REGULATIONS17
(REV 10-07, REV 04-08, REV 06-13, REV 03-14, REV 08-14, ORD 17-09, ORD 18-15, ORD 19-02, ORD 21-06)
The purpose of this Chapter is to reduce street congestion and traffic hazards in the City by incorporating adequate, attractively designed facilities for off-street parking and loading as an integral part of every use of land in the City.
There shall be provided at the time of erection of any building or at the time any main building is enlarged or increased in capacity, minimum off-street parking space with adequate provisions of ingress and egress by standard sized automobiles as provided in this Chapter.
All parking facilities shall satisfy the following minimum standards for design of parking stall and construction standards:
A.
Parking Space Design Standards. Each parking space shall be independently accessible and shall have the following basic design:
1.
Standard Parking Space. Each standard parking space shall consist of a rectangular area not less than ten (10') feet wide and twenty (20') feet in length unless otherwise shown in Table 17.1.
2.
Vertical Clearance. Each space shall have a vertical clearance of not less than seven and one-half (7 1/2') feet.
3.
Accessible Vehicle Spaces. Car parking spaces shall be eight (8') feet wide minimum and twenty (20') feet in length and van parking spaces shall be eleven (11') feet wide minimum, shall be marked to define the width, and shall have an adjacent access aisle of five (5') feet wide. Spaces shall be located near and convenient to a level or ramp entrance. Accessible parking spaces shall be signed and restricted for use by disabled persons only. Access Aisles shall be marked to discourage parking in them.
Exception: Van parking spaces shall be permitted to be eight (8') feet wide minimum where the access aisle is eight (8') feet wide minimum.
B.
Parking Facility Design. Each parking space shall have adequate drives, aisles, and turning and maneuvering areas for access and usability. Minimum parking design standards are defined in Table 17.1 and illustrated in Diagram 17.1.
C.
Street Improvements. Streets fronting off-street parking lot(s) shall be improved in accordance with Title II and Title III.
Note: One-way aisles shall alternate direction, or otherwise provide logical vehicular circulation as approved by the Zoning Administrator, and shall not dead-end if greater than sixty (60') feet in length.
DIAGRAM 17.1 ILLUSTRATES FACILITY MEASUREMENTS AS REQUIRED BY TABLE 17.1
D.
All parking facilities shall be hard surfaced with asphalt, concrete or binder pavement materials. The materials shall be capable of handling the anticipated size and weight of vehicles, including public safety vehicles as approved by the City Engineer.
E.
Each parking lot shall be surrounded by a concrete curb, or other border approved by the City Engineer to ensure the life of the surface and to limit the access to approved ingress and egress.
A.
Except for Single-Family Dwellings and Twin Home Dwellings, direct access to each parking space shall be from a parking lot access and not directly from a public street. All parking spaces shall have independent access not blocked by another parking space or other obstacle. Parking shall be designed to avoid backing onto a public street; Except for Single-Family Dwellings and Twin Home Dwellings and locations where the size or shape of the parcel is such that development would be precluded otherwise.
Adequate ingress and egress to and from all uses shall be provided as follows:
A.
Single-Family Dwelling and Twin Home Dwellings. Driveways for Single-Family Dwelling and Twin Home Dwellings shall be as follows:
1.
No more than two (2) driveways shall be used for each one hundred (100') feet of frontage on any street. No two (2) of said driveways shall be closer to each other than twelve (12') feet.
2.
On corner lots no driveway shall be closer to a street intersection from property line than twenty (20') feet.
B.
Commercial, Industrial, Institutional, and Multi-Family Dwellings. Driveways for commercial, industrial, institutional, and multi-family dwellings shall be as follows:
1.
No more than one (1) driveway shall be used for each eighty (80') feet of frontage on any street. And no driveway shall be closer to a side property line than six (6') feet. In cases where frontage is limited property owners are encouraged to share a common ingress and egress straddling the common property line.
2.
Each driveway shall be not more than forty (40') feet wide, measured at right angles to the centerline of the driveway, except as increased by permissible curb return radii. The entire flare of any return radius shall fall within the right-of-way.
3.
No driveway shall be closer to a street intersection than one hundred (100') feet. Depending upon the classification of the roads comprising the intersection and other factors the City Engineer may reduce the distance.
4.
On State roads the City requires written evidence of UDOT consent to grant ingress and egress.
The minimum number of off-street parking spaces shall be as follows:
1 Note: Multiple Uses. When a development contains multiple uses, more than one (1) parking requirement may be applied.
2 Note: Fraction When Calculating. Any fraction obtained when calculating the parking requirement shall be required to add one (1) additional parking stall.
The Development Review Committee may approve the joint use of a parking lot or facility provided that the applicant can show that conflict between the different users can be effectively eliminated. For instance, willing parties such as a church and a commercial business may share parking facilities if typical heavy use parking times allow. A copy of the recorded perpetual easement shall be provided to the Zoning Administrator.
All parking lot light fixtures shall be installed to diminish light glare from adversely affecting adjacent properties. Pole mounted fixtures are required in lots or along roads. Lighting will be approved as to how adequately it provides for the health and safety of citizens. Design and location of standards and fixtures shall be specified on a Site Plan.
Parking lots shall follow the requirements of Chapter 1.18 Landscaping, Buffering and Fencing Regulations. Automobile/Implement Sales Area (See Definition Chapter 1.03) shall not be considered Parking Lots and shall be exempt from Landscape Island requirements.
A.
Less than twelve (12) Parking Stalls. Parking lots with twelve (12) total parking spaces or less are not required to install landscape islands.
B.
More than twelve (12) Parking Stalls, and no more than twenty (20) Total Parking Stalls. Parking lots with thirteen (13) total parking stalls or more, and no more than twenty (20) total parking stalls shall be required to provide landscape islands at the end of each parking row as described in Sections 1.17.045 C 1 and 2.
C.
More than twenty (20) Parking Stalls. Parking lots with more than twenty (20) parking stalls shall be designed with landscaped islands as follows:
1.
Islands on Single Rows of Parking. On single rows of parking there shall be one (1) eighteen (18') foot long by ten (10') foot wide landscaped island a minimum of every twenty (20) stalls, plus one (1) eighteen (18') foot long by ten (10') foot wide landscape island at each end of the parking rows. Islands shall be landscaped with a minimum of one (1) deciduous tree having a minimum trunk size of two (2") inches in caliper measured at ground level when planted and include other landscaping improvements such as grass, weed barriers, mulch, or ground covers. Landscape islands shall be irrigated to minimize water loss. No hard surface improvements such as concrete or asphalt are allowed within any landscaped islands.
2.
Islands on Doubled Rows of Parking. On doubled rows of parking stalls, there shall be one (1) thirty-six (36') foot long by ten (10') foot wide landscaped island on each end of the parking rows, plus one (1) thirty-six (36') foot long by ten (10') foot wide landscaped island to be placed at minimum of every twenty (20) parking stalls. Each island on doubled parking rows shall include a minimum of two (2) deciduous trees having a minimum trunk size of two (2") inches in caliper measured at ground level when planted and include other landscaping improvements such as grass, weed barriers, mulch, or ground covers. Landscape islands shall be irrigated to minimize water loss. No hard surface improvements such as concrete or asphalt are allowed within any landscaped islands.
Parking lots shall be designed to comply with Section 1.18.035 Required Buffer Widths and Improvements.
Storm Water generated from parking lots are required to comply with Title III General Public Works Construction Standards and Specifications Chapter 3.20 Storm Water Hydrology.
Every parcel of land used as a public or private parking lot shall be developed and maintained in accordance with the following requirements:
A.
Surfacing. Each off-street parking lot shall be surfaced with an asphalt or concrete or other binder pavement and permanently maintained so as to provide a dustless surface. Potholes, cracks, and other damage to the surface shall be repaired in a timely manner.
B.
Maintenance. All parking facilities shall be maintained and kept free of garbage and debris. Striping of parking stalls shall be kept in a manner that allows each stall to be identified. Parking lot landscaping shall be maintained.