- RESIDENTIAL DISTRICTS
The purpose of the Residential Districts is to provide areas for residential housing types at a variety of densities, provide for harmonious neighborhoods located so as to create compatibility and to provide for certain other necessary and related uses within residential communities but limited as to maintain neighborhood compatibility. The R-40, R-30 and R-20 Residential Districts provide for larger minimum lot sizes for use in areas where lower residential densities are necessary to address environmental and public facilities constraints as recommended by the comprehensive plan. The R-15, R-10 and R-7.5 Residential Districts provide for medium density single-family residential development in areas where these densities are recommended by the comprehensive plan. The R-5D Residential Duplex District is created in recognition of the existence of developed areas where single-family and semidetached dwellings exist on lots averaging five thousand (5,000) square feet in area and where duplexes exist on lots of ten thousand (10,000) square feet in area. It is not the intention to create additional R-5D Districts or to enlarge the limits of existing R-5D Districts. The R-5R Residential Resort District is created in recognition of the existence of developed areas where single-family and duplex dwellings exist on lots of less than seven thousand five hundred (7,500) square feet of area and where the character of the neighborhood includes both permanent yearround residents as well as seasonal residents. It is not the intention to create additional R-5R Districts or to enlarge the limits of existing R-5R Districts. The R-5S Residential Single-Family District is created in recognition of the existence of developed areas where single-family dwellings exist on lots with fifty- and sixty-foot frontages. It is not the intention to create additional R-5S Districts or to enlarge the limits of existing R-5S Districts. The R-2.5 Residential Townhouse District provides for the development of residential townhouses in areas where such development is recommended by the comprehensive plan.
(a)
Principal and conditional uses. The following chart lists those uses permitted within the R-40 through R-2.5 Residential Districts. Those uses and structures in the respective residential districts shall be permitted as either principal uses indicated by a "P" or as conditional uses indicated by a "C." Uses and structures indicated by an "X" shall be prohibited in the respective districts. No uses or structures other than as specified shall be permitted.
(b)
Accessory uses and structures. Uses and structures which are customarily accessory and clearly incidental and subordinate to principal uses and structures and where such accessory structures do not exceed the height of the principal structure and, in all residential zoning districts, except for R-30 and R-40, do not exceed five hundred (500) square feet of floor area or twenty (20) percent of the floor area of the principal structure, whichever is greater. In the R-30 and R-40 residential zoning districts, accessory uses and structures shall not exceed thirty (30) percent of the floor area of the principal structure. Such accessory uses and structures include but are not limited to:
(1)
Detached guest house and limited use accessory dwelling unit within the R-40 District only;
(2)
Bees;
(3)
Swimming pools, boat houses, piers, etc.;
(4)
In connection with agricultural use, no more than one roadside stand for sale of agricultural products produced on the premises; provided that no such stand shall exceed five hundred (500) square feet in floor area nor be erected within twenty (20) feet of the property line fronting any street;
(5)
An accessory activity operated for profit in a residential dwelling unit where (i) there is no change in the outside appearance of the building or premises or any visible or audible evidence detectable from outside the building lot, either permanently or intermittently, of the conduct of such business except for one (1) nonilluminated sign not more than one (1) square foot in area mounted flat against the residence; (ii) no traffic is generated, including traffic by commercial delivery vehicles, by such activity in greater volumes than would normally be expected in the neighborhood, and any need for parking generated by the conduct of such activity is met off the street and other than in a required front yard; (iii) the activity is conducted on the premises which is the bona fide residence of the principal practitioner, and no person other than members of the immediate family occupying such dwelling units is employed in the activity; (iv) such activity is conducted only in the principal structure on the lot; (v) there are no sales to the general public of products or merchandise from the home; and (vi) the activity is specifically designed or conducted to permit no more than one (1) patron, customer, or pupil to be present on the premises at any one time. Notwithstanding the provisions of clauses (ii) and (vi) hereof, ministers, marriage commissioners and other persons authorized by law to perform the rites of marriage may permit a maximum of eight (8) persons on the premises at any one time in connection with the performance of such rites, provided that all other requirements of subdivision (b)(5) are met. The following are specifically prohibited as accessory activities: Convalescent or nursing homes, tourist homes, massage or tattoo parlors, body piercing establishments, radio or television repair shops, auto repair shops, or similar establishments;
(6)
Temporary family health care structures, in accordance with the provisions of section 209.2;
(7)
Rental of rooms in a dwelling or the entire dwelling thirty (30) consecutive days or more is an accessory use to the dwelling.
(c)
Special restrictions in Accident Potential Zone 1 (APZ-1). No use or structure shall be permitted on any property located within Accident Potential Zone 1 (APZ-1) or the Clear Zone unless such use is designated as Compatible in APZ-1 or the Clear Zone, as the case may be, in Table 2 ("Air Installations Compatible Use Zones Land Use Compatibility in Accident Potential Zones") of section 1804; provided, however, that any use or structure not designated as Compatible shall be permitted as a replacement of the same use or structure if the replacement use or structure is of equal or lesser density or intensity than the original use or structure.
(Ord. No. 2002, 9-18-90; Ord. No. 2111, 1-14-92; Ord. No. 2161, 6-23-92; Ord. No. 2268, 6-14-94; Ord. No. 2368, 1-9-96; Ord. No. 2459, 10-28-97; Ord. No. 2463, 12-16-97; Ord. No. 2495, 6-23-98; Ord. No. 2513, 10-27-98; Ord. No. 2566, 11-23-99; Ord. No. 2627, 4-24-01; Ord. No. 2704, 6-25-02; Ord. No. 2907, 12-20-05; Ord. No. 2922, 2-14-06; Ord. No. 2976, 4-24-07; Ord. No. 3000, 9-25-07; Ord. No. 3046, 8-26-08; Ord. No. 3102, 9-8-09; Ord. No. 3111, 11-24-09; Ord. No. 3137, 5-25-10; Ord. No. 3147, 7-13-10; Ord. No. 3150, 9-14-10; Ord. No. 3211, 12-6-11; Ord. No. 3403, 4-21-15; Ord. No. 3441, 4-19-16; Ord. No. 3442, 4-19-16; Ord. No. 3468, 12-6-16; Ord. No. 3477, 12-13-16; Ord. No. 3514, 7-11-17; Ord. No. 3526, 12-12-17; Ord. No. 3578, 1-15-19; Ord. No. 3661, 5-18-21; Ord. No. 3667, 7-13-21)
The following chart lists the requirements within the R-40 through R-5S Residential Districts for minimum lot area, width, yard spacing and maximum lot coverage for single-family dwellings.
(a)
For single-family dwellings:
The following chart lists the requirements within the R-5D Residential District for minimum lot area, width, yard spacing and maximum lot coverage for duplex and semidetached dwellings.
(b)
For duplex and semidetached dwellings in the R-5D Residential District:
The following chart lists the requirements within the R-5R Residential District for minimum lot area, width, yard spacing and maximum lot coverage for duplex and semidetached dwellings.
(b1)
For duplex and semidetached dwellings in the R-5R Residential District:
The following chart lists the requirements within the R-2.5 Residential Districts for minimum lot area, average lot area, lot width, yard spacing, maximum lot coverage and maximum number of units that can be attached for attached dwellings (townhouses).
(c)
For attached dwellings (townhouses):
The following chart lists the requirements within the R-40 through R-2.5 Residential Districts for minimum lot area, width, yard spacing and maximum lot coverage for uses and structures other than dwellings.
(d)
For uses other than dwellings:
(e)
Nonconforming lots:
(1)
Where a lot has less than the minimum requirements for the R-5S Residential District and said lot has continuously been a lot of record, in single and separate ownership from adjacent property, prior to and since the passage of this ordinance, said lot may be developed for any purpose permitted within the R-5S Residential District.
(2)
However, if the owner of a lot which does not meet the minimum requirements of the R-5S Residential District, is the owner of or becomes the owner of another substandard lot adjacent to it and located in the same R-5S Residential District, he is not entitled to the exception in (1) above. In this instance, the owner of the two (2) or more adjacent substandard lots must combine the two (2) or more lots to form one which will meet or more closely approximate the frontage and area requirements of the ordinance applicable within the R-5S Residential District.
(3)
The owner of contiguous substandard lots is prohibited from conveying one (1) or more of the substandard lots with the result that both the grantors and the grantee possess lots entitled to an exception from the minimum lot requirements.
(4)
Status as a single and separate owner may not be acquired after enactment of this ordinance by selling a parcel and reducing the remainder below the minimum lot requirements nor may an owner of several contiguous nonconforming parcels combine them so as to leave a substandard lot, and assert the right to exception in (1) above.
For the purposes of this section, lots are not regarded as adjacent where they form an "L", part of one being contiguous to the other.
(Ord. No. 1914, 9-11-89; Ord. No. 1977, 6-11-90; Ord. No. 2096, 8-27-91; Ord. No. 2253, 1-25-94; Ord. No. 2675, 11-27-01; Ord. No. 2735, 1-28-03; Ord. No. 2929, 3-14-06; Ord. No. 2937, 4-11-06; Ord. No. 3118, 3-9-10; Ord. No. 3192, 7-12-11; Ord. No. 3392, 1-20-15)
The following shall constitute the maximum height requirements for all structures within all Residential Districts.
(a)
Except as provided in subsection (b), the maximum height for all buildings and structures shall be thirty-five (35) feet.
(b)
The maximum height for single-family dwellings within the R-40, R-30, R-20 or R-15 Residential District in subdivisions of ten (10) or more lots created after the date of adoption of this subsection shall be forty-two (42) feet.
(c)
Notwithstanding the above, no building or other structure shall exceed the height limit established by section 202(b) regarding air navigation.
(Ord. No. 2767, 6-10-03)
In all Residential Districts, signs shall be permitted as follows:
(a)
For residential subdivisions, one (1) sign not greater than thirty-two (32) square feet in area at each principal entrance or frontage of any use.
(b)
A maximum of two (2) signs located on property for sale, lease or rent, provided that no such sign shall exceed eight (8) square feet in area.
(c)
In the case of subdivisions under construction or development, one (1) sign not exceeding one hundred (100) square feet in surface area at each principal entrance or frontage for a period of two (2) years following the initiation of construction or development. Upon the expiration of such period, there shall be permitted one (1) sign not exceeding sixty-four (64) square feet in surface area for an additional period of three (3) years; provided, however, that any such sign shall be removed when ninety (90) percent of the property has been sold or leased, or upon the expiration of five (5) years following the initiation of construction or development, whichever first occurs.
(Ord. No. 1966, 6-11-90; Ord. No. 3442, 4-19-16)
Parking shall be required for all uses and structures permitted in the R-40 through R-2.5 Residential Districts in accordance with section 203. No area within a garage, or an enclosed or covered space shall be counted toward meeting off-street parking requirements for dwelling units in the residential districts.
(a)
District boundaries. The boundaries of the North End Overlay District shall be as designated on the official zoning map of the city.
(b)
Application of regulations. The designation of any property as lying within the North End Overlay District shall be in addition to, and not in lieu of, the underlying R-5R Residential Resort District classification of such property. All such property shall be subject to the applicable provisions of this section as well as to all other regulations applicable to it, and to the extent that any provision of this section conflicts with any other ordinance or regulation, the provisions of this section shall control.
(c)
Special regulations for development. Permitted uses and structures and dimensional requirements for uses and structures located within the North End Overlay District shall be as specified in sections 501 and 502, respectively; provided, however, that two single-family dwellings may be located on a single lot if the following standards are met:
(1)
Dimensional requirements generally. Unless otherwise specified herein or in subsection (d), dimensional requirements shall be those applicable to duplex dwellings in the R-5R Residential District [section 502 (b1)];
(2)
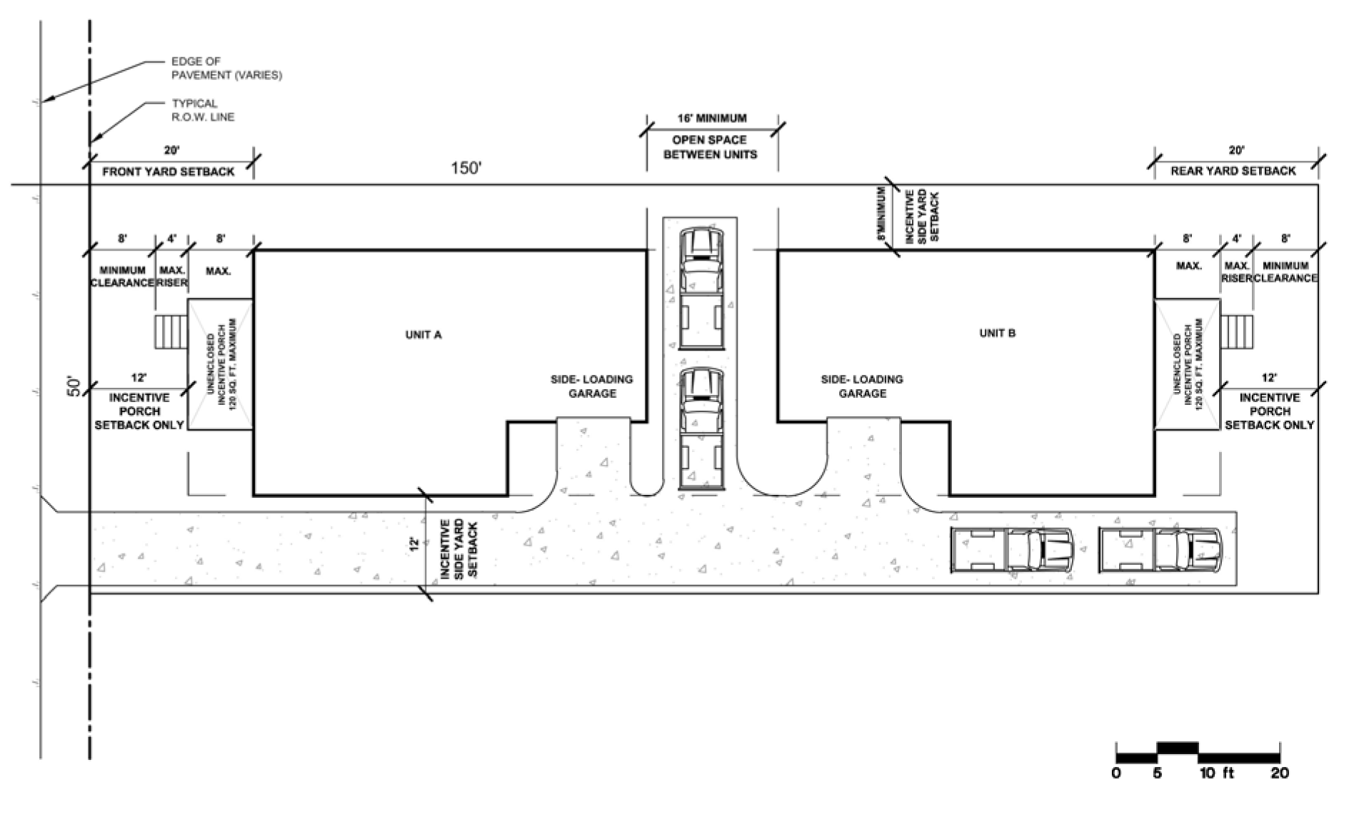
Building separation. There shall be a minimum separation of sixteen (16) feet between dwellings on the lot. Such space shall be unencumbered by any structures or improvements, other than fences, greater than sixteen (16) inches in height above ground elevation;
(3)
Height. No dwelling shall be greater than thirty-five (35) feet or two and one-half (2½) stories in height, as measured from the lowest grade within six (6) feet of the building perimeter to the highest point of the building. Building walls shall be a maximum of twenty-five (25) feet high, as measured from the lowest grade within six (6) feet of the building perimeter to the primary roof rafter bearing point. Roof dormers, if any, shall conform to the dimensions and design shown on Building Massing Diagram (Figure 1) and Roof Dormer Diagram (Figure 2);
(4)
Garages. Garage walls containing an overhead door facing a public street shall be set back a minimum of six (6) feet from the main wall of the dwelling facing the same street. Garage walls containing an overhead door facing a street shall have a maximum width of thirty (30) percent of the lot dimension parallel to the garage door; and
(5)
Parking. Vehicular parking areas shall not be located between the street and the front of the dwelling or porch facing the street, other than at a front-loading garage. To facilitate on-site parking and access to rear- or side-facing garages, one side yard setback may be reduced to a minimum of eight (8) feet, provided that the opposite side yard setback is increased a like amount, such that the total of the two setbacks equals twenty (20) feet.
FIGURE 1. BUILDING MASSING DIAGRAM
Figure 3 (Example Site Diagram A) and Figure 4 (Example Site Diagram B) illustrate the requirements of subdivisions (4) and (5) above.
FIGURE 3. EXAMPLE SITE DIAGRAM A
FIGURE 4. EXAMPLE SITE DIAGRAM B
(d)
Design incentives. The following deviations from requirements otherwise applicable to property within the North End Overlay District shall be allowed where the dwellings conform to the provisions of subsection (c):
(1)
Bonus porches. One-story, roofed, unenclosed porches may extend a maximum of eight (8) feet into a required front or rear yard, except where a yard faces the Atlantic Ocean. Porch roof rafter bearings shall be a maximum of ten (10) feet above the first story finished floor. A maximum of one hundred twenty (120) square feet of the floor area of such porches for each of the two dwelling units shall be excluded from the calculation of lot coverage.
In addition, a maximum of four (4) uncovered stair treads that lead to an unenclosed porch may encroach further into a required yard, provided that the setback from the lowest tread to the nearest property line is a minimum of four (4) feet.
(2)
Bay or bow windows. Bay or bow window elements having a rafter bearing of no more than ten (10) feet above the finished floor may encroach a maximum of eighteen (18) inches into either side yard setback, the front yard and the rear yard; provided, that (i) the total of such setback encroachments shall be no greater than one-third (⅓) of the length of the wall in which the windows are located; and (ii) a minimum side-yard setback of eight (8) feet from the face of the encroaching window is maintained.
(Ord. No. 3431, 11-17-15; Ord. No. 3446, 4-19-16)
(a)
Purpose. The purpose of this section is to enhance the opportunities for affordable housing and independent living available to senior citizens and disabled persons, while maintaining the tranquility and integrity of single-family residential neighborhoods.
(b)
Requirements. Subject to the following provisions, flex suites shall be allowed only by permit issued pursuant to subsection (c) and only in single-family dwellings in zoning districts in which they are permitted as principal uses:
(1)
No more than one (1) flex suite shall be permitted on any lot;
(2)
Flex suites shall not be metered separately for water or electric service or be separately connected to the public water or sewer system;
(3)
No flex suite may be constructed or occupied in any dwelling unless (i) the owner of record personally resides in such dwelling, (ii) the dwelling in which the flex suite is located is occupied by a person or group of persons meeting the definition of "family" set forth in section 111, or (iii) the flex suite or dwelling in which it is located is occupied by at least one (1) person who is sixty-two (62) years of age or older or disabled;
(4)
No flex suite shall have a floor area in excess of five hundred (500) square feet or thirty (30) percent of the floor area of the remainder of the dwelling in which it is located, whichever is greater; and
(5)
No flex suite or dwelling in which a flex suite is located shall be used for purposes of transient occupancy. For purposes of this section, the term "transient occupancy" shall mean occupancy for periods of less than ninety (90) consecutive days.
(c)
Permits. Flex suite permits shall be valid for a period of two (2) years, and may be renewed for additional two-year periods pursuant to the procedure specified herein. Applications therefor shall be made to the department of planning, signed by at least one (1) owner of record of the property upon which the flex suite is to be located, and shall be accompanied by the following items:
(1)
A deed to the property or current tax bill evidencing the ownership of the property; and
(2)
A statement, on a form prescribed by the director of planning, certifying that the occupants of the dwelling in which the flex suite is to be located will be limited to those persons mentioned in subdivision (3) of subsection (b).
A permit shall be granted if the application meets all requirements of this section and other applicable ordinances, and shall otherwise be denied.
(Ord. No. 2459, 10-28-97; Ord. No. 2668, 10-23-01; Ord. No. 2704, 6-25-02)
- RESIDENTIAL DISTRICTS
The purpose of the Residential Districts is to provide areas for residential housing types at a variety of densities, provide for harmonious neighborhoods located so as to create compatibility and to provide for certain other necessary and related uses within residential communities but limited as to maintain neighborhood compatibility. The R-40, R-30 and R-20 Residential Districts provide for larger minimum lot sizes for use in areas where lower residential densities are necessary to address environmental and public facilities constraints as recommended by the comprehensive plan. The R-15, R-10 and R-7.5 Residential Districts provide for medium density single-family residential development in areas where these densities are recommended by the comprehensive plan. The R-5D Residential Duplex District is created in recognition of the existence of developed areas where single-family and semidetached dwellings exist on lots averaging five thousand (5,000) square feet in area and where duplexes exist on lots of ten thousand (10,000) square feet in area. It is not the intention to create additional R-5D Districts or to enlarge the limits of existing R-5D Districts. The R-5R Residential Resort District is created in recognition of the existence of developed areas where single-family and duplex dwellings exist on lots of less than seven thousand five hundred (7,500) square feet of area and where the character of the neighborhood includes both permanent yearround residents as well as seasonal residents. It is not the intention to create additional R-5R Districts or to enlarge the limits of existing R-5R Districts. The R-5S Residential Single-Family District is created in recognition of the existence of developed areas where single-family dwellings exist on lots with fifty- and sixty-foot frontages. It is not the intention to create additional R-5S Districts or to enlarge the limits of existing R-5S Districts. The R-2.5 Residential Townhouse District provides for the development of residential townhouses in areas where such development is recommended by the comprehensive plan.
(a)
Principal and conditional uses. The following chart lists those uses permitted within the R-40 through R-2.5 Residential Districts. Those uses and structures in the respective residential districts shall be permitted as either principal uses indicated by a "P" or as conditional uses indicated by a "C." Uses and structures indicated by an "X" shall be prohibited in the respective districts. No uses or structures other than as specified shall be permitted.
(b)
Accessory uses and structures. Uses and structures which are customarily accessory and clearly incidental and subordinate to principal uses and structures and where such accessory structures do not exceed the height of the principal structure and, in all residential zoning districts, except for R-30 and R-40, do not exceed five hundred (500) square feet of floor area or twenty (20) percent of the floor area of the principal structure, whichever is greater. In the R-30 and R-40 residential zoning districts, accessory uses and structures shall not exceed thirty (30) percent of the floor area of the principal structure. Such accessory uses and structures include but are not limited to:
(1)
Detached guest house and limited use accessory dwelling unit within the R-40 District only;
(2)
Bees;
(3)
Swimming pools, boat houses, piers, etc.;
(4)
In connection with agricultural use, no more than one roadside stand for sale of agricultural products produced on the premises; provided that no such stand shall exceed five hundred (500) square feet in floor area nor be erected within twenty (20) feet of the property line fronting any street;
(5)
An accessory activity operated for profit in a residential dwelling unit where (i) there is no change in the outside appearance of the building or premises or any visible or audible evidence detectable from outside the building lot, either permanently or intermittently, of the conduct of such business except for one (1) nonilluminated sign not more than one (1) square foot in area mounted flat against the residence; (ii) no traffic is generated, including traffic by commercial delivery vehicles, by such activity in greater volumes than would normally be expected in the neighborhood, and any need for parking generated by the conduct of such activity is met off the street and other than in a required front yard; (iii) the activity is conducted on the premises which is the bona fide residence of the principal practitioner, and no person other than members of the immediate family occupying such dwelling units is employed in the activity; (iv) such activity is conducted only in the principal structure on the lot; (v) there are no sales to the general public of products or merchandise from the home; and (vi) the activity is specifically designed or conducted to permit no more than one (1) patron, customer, or pupil to be present on the premises at any one time. Notwithstanding the provisions of clauses (ii) and (vi) hereof, ministers, marriage commissioners and other persons authorized by law to perform the rites of marriage may permit a maximum of eight (8) persons on the premises at any one time in connection with the performance of such rites, provided that all other requirements of subdivision (b)(5) are met. The following are specifically prohibited as accessory activities: Convalescent or nursing homes, tourist homes, massage or tattoo parlors, body piercing establishments, radio or television repair shops, auto repair shops, or similar establishments;
(6)
Temporary family health care structures, in accordance with the provisions of section 209.2;
(7)
Rental of rooms in a dwelling or the entire dwelling thirty (30) consecutive days or more is an accessory use to the dwelling.
(c)
Special restrictions in Accident Potential Zone 1 (APZ-1). No use or structure shall be permitted on any property located within Accident Potential Zone 1 (APZ-1) or the Clear Zone unless such use is designated as Compatible in APZ-1 or the Clear Zone, as the case may be, in Table 2 ("Air Installations Compatible Use Zones Land Use Compatibility in Accident Potential Zones") of section 1804; provided, however, that any use or structure not designated as Compatible shall be permitted as a replacement of the same use or structure if the replacement use or structure is of equal or lesser density or intensity than the original use or structure.
(Ord. No. 2002, 9-18-90; Ord. No. 2111, 1-14-92; Ord. No. 2161, 6-23-92; Ord. No. 2268, 6-14-94; Ord. No. 2368, 1-9-96; Ord. No. 2459, 10-28-97; Ord. No. 2463, 12-16-97; Ord. No. 2495, 6-23-98; Ord. No. 2513, 10-27-98; Ord. No. 2566, 11-23-99; Ord. No. 2627, 4-24-01; Ord. No. 2704, 6-25-02; Ord. No. 2907, 12-20-05; Ord. No. 2922, 2-14-06; Ord. No. 2976, 4-24-07; Ord. No. 3000, 9-25-07; Ord. No. 3046, 8-26-08; Ord. No. 3102, 9-8-09; Ord. No. 3111, 11-24-09; Ord. No. 3137, 5-25-10; Ord. No. 3147, 7-13-10; Ord. No. 3150, 9-14-10; Ord. No. 3211, 12-6-11; Ord. No. 3403, 4-21-15; Ord. No. 3441, 4-19-16; Ord. No. 3442, 4-19-16; Ord. No. 3468, 12-6-16; Ord. No. 3477, 12-13-16; Ord. No. 3514, 7-11-17; Ord. No. 3526, 12-12-17; Ord. No. 3578, 1-15-19; Ord. No. 3661, 5-18-21; Ord. No. 3667, 7-13-21)
The following chart lists the requirements within the R-40 through R-5S Residential Districts for minimum lot area, width, yard spacing and maximum lot coverage for single-family dwellings.
(a)
For single-family dwellings:
The following chart lists the requirements within the R-5D Residential District for minimum lot area, width, yard spacing and maximum lot coverage for duplex and semidetached dwellings.
(b)
For duplex and semidetached dwellings in the R-5D Residential District:
The following chart lists the requirements within the R-5R Residential District for minimum lot area, width, yard spacing and maximum lot coverage for duplex and semidetached dwellings.
(b1)
For duplex and semidetached dwellings in the R-5R Residential District:
The following chart lists the requirements within the R-2.5 Residential Districts for minimum lot area, average lot area, lot width, yard spacing, maximum lot coverage and maximum number of units that can be attached for attached dwellings (townhouses).
(c)
For attached dwellings (townhouses):
The following chart lists the requirements within the R-40 through R-2.5 Residential Districts for minimum lot area, width, yard spacing and maximum lot coverage for uses and structures other than dwellings.
(d)
For uses other than dwellings:
(e)
Nonconforming lots:
(1)
Where a lot has less than the minimum requirements for the R-5S Residential District and said lot has continuously been a lot of record, in single and separate ownership from adjacent property, prior to and since the passage of this ordinance, said lot may be developed for any purpose permitted within the R-5S Residential District.
(2)
However, if the owner of a lot which does not meet the minimum requirements of the R-5S Residential District, is the owner of or becomes the owner of another substandard lot adjacent to it and located in the same R-5S Residential District, he is not entitled to the exception in (1) above. In this instance, the owner of the two (2) or more adjacent substandard lots must combine the two (2) or more lots to form one which will meet or more closely approximate the frontage and area requirements of the ordinance applicable within the R-5S Residential District.
(3)
The owner of contiguous substandard lots is prohibited from conveying one (1) or more of the substandard lots with the result that both the grantors and the grantee possess lots entitled to an exception from the minimum lot requirements.
(4)
Status as a single and separate owner may not be acquired after enactment of this ordinance by selling a parcel and reducing the remainder below the minimum lot requirements nor may an owner of several contiguous nonconforming parcels combine them so as to leave a substandard lot, and assert the right to exception in (1) above.
For the purposes of this section, lots are not regarded as adjacent where they form an "L", part of one being contiguous to the other.
(Ord. No. 1914, 9-11-89; Ord. No. 1977, 6-11-90; Ord. No. 2096, 8-27-91; Ord. No. 2253, 1-25-94; Ord. No. 2675, 11-27-01; Ord. No. 2735, 1-28-03; Ord. No. 2929, 3-14-06; Ord. No. 2937, 4-11-06; Ord. No. 3118, 3-9-10; Ord. No. 3192, 7-12-11; Ord. No. 3392, 1-20-15)
The following shall constitute the maximum height requirements for all structures within all Residential Districts.
(a)
Except as provided in subsection (b), the maximum height for all buildings and structures shall be thirty-five (35) feet.
(b)
The maximum height for single-family dwellings within the R-40, R-30, R-20 or R-15 Residential District in subdivisions of ten (10) or more lots created after the date of adoption of this subsection shall be forty-two (42) feet.
(c)
Notwithstanding the above, no building or other structure shall exceed the height limit established by section 202(b) regarding air navigation.
(Ord. No. 2767, 6-10-03)
In all Residential Districts, signs shall be permitted as follows:
(a)
For residential subdivisions, one (1) sign not greater than thirty-two (32) square feet in area at each principal entrance or frontage of any use.
(b)
A maximum of two (2) signs located on property for sale, lease or rent, provided that no such sign shall exceed eight (8) square feet in area.
(c)
In the case of subdivisions under construction or development, one (1) sign not exceeding one hundred (100) square feet in surface area at each principal entrance or frontage for a period of two (2) years following the initiation of construction or development. Upon the expiration of such period, there shall be permitted one (1) sign not exceeding sixty-four (64) square feet in surface area for an additional period of three (3) years; provided, however, that any such sign shall be removed when ninety (90) percent of the property has been sold or leased, or upon the expiration of five (5) years following the initiation of construction or development, whichever first occurs.
(Ord. No. 1966, 6-11-90; Ord. No. 3442, 4-19-16)
Parking shall be required for all uses and structures permitted in the R-40 through R-2.5 Residential Districts in accordance with section 203. No area within a garage, or an enclosed or covered space shall be counted toward meeting off-street parking requirements for dwelling units in the residential districts.
(a)
District boundaries. The boundaries of the North End Overlay District shall be as designated on the official zoning map of the city.
(b)
Application of regulations. The designation of any property as lying within the North End Overlay District shall be in addition to, and not in lieu of, the underlying R-5R Residential Resort District classification of such property. All such property shall be subject to the applicable provisions of this section as well as to all other regulations applicable to it, and to the extent that any provision of this section conflicts with any other ordinance or regulation, the provisions of this section shall control.
(c)
Special regulations for development. Permitted uses and structures and dimensional requirements for uses and structures located within the North End Overlay District shall be as specified in sections 501 and 502, respectively; provided, however, that two single-family dwellings may be located on a single lot if the following standards are met:
(1)
Dimensional requirements generally. Unless otherwise specified herein or in subsection (d), dimensional requirements shall be those applicable to duplex dwellings in the R-5R Residential District [section 502 (b1)];
(2)
Building separation. There shall be a minimum separation of sixteen (16) feet between dwellings on the lot. Such space shall be unencumbered by any structures or improvements, other than fences, greater than sixteen (16) inches in height above ground elevation;
(3)
Height. No dwelling shall be greater than thirty-five (35) feet or two and one-half (2½) stories in height, as measured from the lowest grade within six (6) feet of the building perimeter to the highest point of the building. Building walls shall be a maximum of twenty-five (25) feet high, as measured from the lowest grade within six (6) feet of the building perimeter to the primary roof rafter bearing point. Roof dormers, if any, shall conform to the dimensions and design shown on Building Massing Diagram (Figure 1) and Roof Dormer Diagram (Figure 2);
(4)
Garages. Garage walls containing an overhead door facing a public street shall be set back a minimum of six (6) feet from the main wall of the dwelling facing the same street. Garage walls containing an overhead door facing a street shall have a maximum width of thirty (30) percent of the lot dimension parallel to the garage door; and
(5)
Parking. Vehicular parking areas shall not be located between the street and the front of the dwelling or porch facing the street, other than at a front-loading garage. To facilitate on-site parking and access to rear- or side-facing garages, one side yard setback may be reduced to a minimum of eight (8) feet, provided that the opposite side yard setback is increased a like amount, such that the total of the two setbacks equals twenty (20) feet.
FIGURE 1. BUILDING MASSING DIAGRAM
Figure 3 (Example Site Diagram A) and Figure 4 (Example Site Diagram B) illustrate the requirements of subdivisions (4) and (5) above.
FIGURE 3. EXAMPLE SITE DIAGRAM A
FIGURE 4. EXAMPLE SITE DIAGRAM B
(d)
Design incentives. The following deviations from requirements otherwise applicable to property within the North End Overlay District shall be allowed where the dwellings conform to the provisions of subsection (c):
(1)
Bonus porches. One-story, roofed, unenclosed porches may extend a maximum of eight (8) feet into a required front or rear yard, except where a yard faces the Atlantic Ocean. Porch roof rafter bearings shall be a maximum of ten (10) feet above the first story finished floor. A maximum of one hundred twenty (120) square feet of the floor area of such porches for each of the two dwelling units shall be excluded from the calculation of lot coverage.
In addition, a maximum of four (4) uncovered stair treads that lead to an unenclosed porch may encroach further into a required yard, provided that the setback from the lowest tread to the nearest property line is a minimum of four (4) feet.
(2)
Bay or bow windows. Bay or bow window elements having a rafter bearing of no more than ten (10) feet above the finished floor may encroach a maximum of eighteen (18) inches into either side yard setback, the front yard and the rear yard; provided, that (i) the total of such setback encroachments shall be no greater than one-third (⅓) of the length of the wall in which the windows are located; and (ii) a minimum side-yard setback of eight (8) feet from the face of the encroaching window is maintained.
(Ord. No. 3431, 11-17-15; Ord. No. 3446, 4-19-16)
(a)
Purpose. The purpose of this section is to enhance the opportunities for affordable housing and independent living available to senior citizens and disabled persons, while maintaining the tranquility and integrity of single-family residential neighborhoods.
(b)
Requirements. Subject to the following provisions, flex suites shall be allowed only by permit issued pursuant to subsection (c) and only in single-family dwellings in zoning districts in which they are permitted as principal uses:
(1)
No more than one (1) flex suite shall be permitted on any lot;
(2)
Flex suites shall not be metered separately for water or electric service or be separately connected to the public water or sewer system;
(3)
No flex suite may be constructed or occupied in any dwelling unless (i) the owner of record personally resides in such dwelling, (ii) the dwelling in which the flex suite is located is occupied by a person or group of persons meeting the definition of "family" set forth in section 111, or (iii) the flex suite or dwelling in which it is located is occupied by at least one (1) person who is sixty-two (62) years of age or older or disabled;
(4)
No flex suite shall have a floor area in excess of five hundred (500) square feet or thirty (30) percent of the floor area of the remainder of the dwelling in which it is located, whichever is greater; and
(5)
No flex suite or dwelling in which a flex suite is located shall be used for purposes of transient occupancy. For purposes of this section, the term "transient occupancy" shall mean occupancy for periods of less than ninety (90) consecutive days.
(c)
Permits. Flex suite permits shall be valid for a period of two (2) years, and may be renewed for additional two-year periods pursuant to the procedure specified herein. Applications therefor shall be made to the department of planning, signed by at least one (1) owner of record of the property upon which the flex suite is to be located, and shall be accompanied by the following items:
(1)
A deed to the property or current tax bill evidencing the ownership of the property; and
(2)
A statement, on a form prescribed by the director of planning, certifying that the occupants of the dwelling in which the flex suite is to be located will be limited to those persons mentioned in subdivision (3) of subsection (b).
A permit shall be granted if the application meets all requirements of this section and other applicable ordinances, and shall otherwise be denied.
(Ord. No. 2459, 10-28-97; Ord. No. 2668, 10-23-01; Ord. No. 2704, 6-25-02)