18 - RM ZONE MULTIPLE FAMILY RESIDENTIAL
The purpose of the RM districts is to provide living areas within Woodlake where development is consistent with the Woodlake general plan and is limited to medium and high density concentrations of multi-family dwellings, and where regulations are designed to promote the following:
1.
Encourage a suitable environment for family life, recognizing that a significant part of the multi-family population is adult, including senior citizens;
2.
Provide space for community facilities, including parks, schools, churches and other facilities that will complement the residential environment;
3.
An attractive and unique project that encompasses well-designed buildings with ample landscape and off-street parking;
4.
The conservation of valuable resources ranging from water to energy; and
5.
Housing that is affordable to low- and moderate-income households and to households that have special housing needs.
(Ord. No. 579 , § 1, 4-25-2011)
In order to adequately plan for multi-family development at various densities, the RM district is divided into the following subdistricts: RM-2 (multi-family residential, one unit per three thousand (3,000) square feet) and RM-3 (multi-family residential, one unit per one thousand five hundred (1,500) square feet).
The RM-2 district is consistent with the "medium density" residential designation in Woodlake's land use element; the RM-3 district is consistent with the Element's "high density" residential designation.
(Ord. No. 579 , § 1, 4-25-2011)
A.
Single-family dwellings, duplexes and tri-plexes;
B.
Multi-family complexes;
C.
Senior citizen apartments;
D.
Transitional and supportive housing (six or fewer persons);
E.
Home occupations subject to the requirements detailed in Chapter 17.64;
F.
Small day care homes consistent with Chapter 17.64;
G.
Mobile homes subject to design standards contained in Chapter 17.16;
H.
Licensed group care homes (six or fewer persons) consistent with Chapter 17.64;
I.
Drainage basins;
J.
Water well sites;
K.
Utility facilities, including electrical substations, elevated pressure tanks, and communication equipment buildings; and
L.
Model apartments and rental offices associated with the development of a multi-family development.
(Ord. No. 579 , § 1, 4-25-2011)
A.
Incidental and accessory structures and uses located on the same site as the permitted use including private garages and carports; storage buildings; garden structures, greenhouses; and recreation rooms, hobby shops and swimming pools. Development standards for some of these accessory structures are provided in Chapter 17.64.
B.
Temporary apartment rental office and signs consistent with Chapter 17.69.
C.
Enclosed temporary construction materials storage yards associated with the development of an apartment complex.
(Ord. No. 579 , § 1, 4-25-2011)
The outside placement, parking, storage or stockpiling of equipment, materials, vehicles, furnishings or commodities, not associated with the normal use, maintenance or repair of a residential dwelling or its accessory structures, and including but not limited to farm equipment, porta-potties, picking ladders, agricultural produces, produce boxes and bins, trucks larger than one ton, scrap materials, inoperable vehicles and appliances or furniture.
Outside storage restrictions shall be exempt for persons conducting yard or garage sales that have an appropriate city permit.
(Ord. No. 579 , § 1, 4-25-2011)
The following uses shall be permitted upon the granting of a use permit consistent with Chapter 17.48:
A.
Public and quasi-public uses of an educational or religious type including public and parochial elementary schools, junior high schools, high schools and colleges; nursery schools, nonprofit schools and colleges; churches and other religious institutions;
B.
Public and private charitable institutions, hospitals, convalescent homes, sanitariums, or rest homes for mental, drug or alcoholic cases;
C.
Public uses of an administrative, recreational, pubic service or cultural types including city, county, state or federal administrative centers and courts, libraries, museums, art galleries, police and fire stations and other public buildings, structures and facilities; public playgrounds, parks and community centers;
D.
Rest homes and nursing homes; boardinghouses and rooming houses;
E.
Labor camps;
F.
Emergency shelters; and
G.
Bed and breakfast.
(Ord. No. 579 , § 1, 4-25-2011)
No multi-family uses may be established on any lot or site in this district until a site plan has been submitted and approved consistent with Chapter 17.54.
(Ord. No. 579 , § 1, 4-25-2011)
Also illustrated in Exhibit 18-1: RM Zone Development Standards.
A.
Unit Density. The maximum unit density for Woodlake's multi-family residential districts are as follows:
B.
Lot Frontage, Depth and Area.
1.
The minimum lot frontage for each of Woodlake's multi-family residential districts are as follows:
2.
The minimum lot depth for each of Woodlake's multi-family residential districts are as follows:
Figure 18-1: RM Zone Development Standards
3.
The minimum area of all newly-created lots for each of Woodlake's multi-family residential districts are as follows:
C.
Building Height. The maximum height of residential structures shall be thirty-five (35) feet; the maximum height of accessory structures shall be fifteen (15) feet.
D.
Lot Coverage.
E.
Yard Requirements.
1.
Front Yard:
On a lot situated between residential lots with buildings that are set back less than the minimum distance required by this section, the minimum front yard set back shall be the average of the front yard set backs of the adjoining lots.
2.
Side Yard:
On the street side of a corner lot, the side yard setback shall be one-half the required front yard set back.
Where an interior lot is less than fifty (50) feet in width, each side yard shall be a minimum of ten percent of the lot width, or three feet, whichever is greater.
3.
Rear Yard:
4.
Garage/Carport Setback: A garage or carport that faces a public street shall be set back a minimum of twenty (20) feet from the back of sidewalk or property line, whichever distance is greater.
5.
Minimum distance between buildings on the same lot: The minimum distance between a structure used for human habitation and another structure (such as another dwelling, detached garage, carport, or storage shed, etc.) shall be ten feet.
6.
Exceptions:
a.
Architectural features, including eaves, sills, chimneys, cornices, and bay windows may extend up to thirty (30) inches into a required side yard.
b.
Uncovered, unenclosed porches, platforms or landings that do not extend above the first floor elevation may extend a maximum of six feet into a front or rear yard setback area. Railings up to thirty (30) inches in height may be installed on any of these features.
(Ord. No. 579 , § 1, 4-25-2011)
Fences, Walls and Hedges shall be consistent with the requirements detailed in Chapter 17.67 of the Woodlake Municipal Code.
(Ord. No. 579 , § 1, 4-25-2011; Ord. No. 628 , § 2, 1-13-2020)
A.
For multi-family dwellings, a minimum of 1.5 parking stalls shall be required. Half of these stalls shall be covered. All parking spaces, driveways and parking lots shall have a concrete or asphalt surface.
Where a carport or garage is open to a public street, a driveway of at least twenty (20) feet shall be provided between the face of the garage and the back of sidewalk or property line, whichever distance is greater.
B.
Non-residential uses in this district shall provide off-street parking consistent with Chapter 17.68.
(Ord. No. 579 , § 1, 4-25-2011)
Signs shall be consistent with the requirements detailed in Chapter 17.69.
(Ord. No. 579 , § 1, 4-25-2011)
All multi-family projects that contain sixteen (16) or more units shall be required to provide an on-site manager.
(Ord. No. 579 , § 1, 4-25-2011)
The following standards shall apply to all multi-family developments, excluding duplexes.
A.
The architectural design of multi-family developments to the best extent possible should be compatible with adjacent residential neighborhoods. Compatibility may involve the use of materials, color, scale, roof pitch, and other physical features that would assist in blending the new multi-family development with surrounding residential uses.
B.
The architectural design of multi-family developments that are not adjacent to or within existing residential neighborhood shall consider the following design standards:
1.
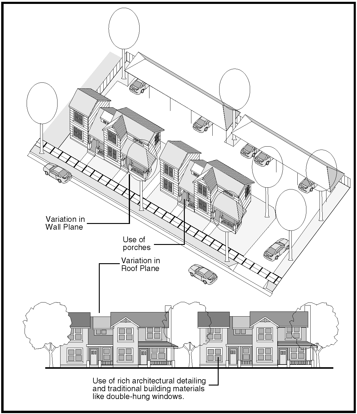
Long, unbroken building facades and box-like building forms should be discouraged. Building facades should be varied by alternating building planes, building material, color and building heights (see Figure 18-2). Other approaches to providing interesting multi-family structures could involve alternating the patterns of window and door opening; the use of projections such as balconies, porches and awnings; and changing setbacks and softening the building facade with tree plantings.
2.
Setbacks should be varied with individual structures.
3.
The roof lines of multi-family structures should be altered to provide a more interesting horizontal view.
4.
There should only be a maximum of two adjacent multi-family units with identical wall and roof line planes.
5.
It is important that door and window openings be articulated on the face of the multi-family structure. Articulation can include framing, insets or shutters for windows and insets, framing and color for doorways.
6.
Materials used for multi-family developments should be durable and of low-maintenance. Where possible, exterior siding should provide a distinctive appearance, such as river rock, brick, or flagstone.
7.
Stairways should be designed as an integral part of the overall multi-family development. Materials used on the building should be incorporated into the stairway design (see Figure 18-3). Stairways should not be a dominant exterior feature on the building but should be sited so that they are not visually prominent.
Figure 18-2: Architectural Design Concepts
C.
Parking lots and carports or garages should be designed to blend in with the overall multi-family project.
1.
Long, unbroken rows of parking spaces are discouraged. Where possible, these rows should be broken by landscaped islands, buildings, or garages.
2.
Carports should contain design elements that make the structures visually interesting, such as finished roofs or articulated support beams.
3.
Parking lots should be screened from adjacent properties with a seven-foot solid block wall that is softened with landscaping.
D.
Special design treatment should be given to the entryways and street corners of multi-family projects.
1.
The street corners of multi-family projects should be enhanced visually with features like landscaping, walls, lighting, fountains, trellises, signage, public art, etc.
2.
Project entryways should be given special treatment such as stamped concrete driveways, metal gates with pilasters or landscaped medians.
E.
All common areas shall be provided with landscaping and an automated irrigation system. Landscaping shall be consistent with Chapter 17.66.
F.
All trash enclosures shall be surrounded by a six-foot solid block wall and a metal gate. A trellis or arbor shall be constructed over the trash enclosure. The exterior to the enclosure shall be landscaped.
G.
All roof-mounted mechanical equipment shall be screened from view.
H.
Where a multi-family development abuts a single-family use or a commercial use, a seven-foot solid block wall shall be constructed along the property line common to the two land uses.
(Ord. No. 579 , § 1, 4-25-2011)
A.
To the greatest extent possible, the multi-family buildings should run east and west to take advantage of passive solar design opportunities (see Figure 18-4).
B.
All ground-mounted heating/cooling units shall be located on the east side of a building that fronts onto an east/west roadway, and on the north side of a building that fronts onto a north/south roadway (this location feature will conserve energy).
C.
The landscaping plan for the multi-family complex should plant deciduous trees on the south and west sides of the residential complex (this location design feature will conserve energy).
Figure 18-4: Energy Conservation
(Ord. No. 579 , § 1, 4-25-2011)
A.
All residential projects that contain more than two thousand five hundred (2,500) square feet of landscaped area shall comply with the regulations contained in Chapter 17.66.
B.
Not more than fifty (50) percent of the front yard landscaping shall be devoted to turf. Shrubs planted in the front yard shall be drought-tolerant species (these design features will conserve water).
C.
All parkways shall be five feet wide, shall be depressed and shall be provided with a drip irrigation line that runs from the multi-family development to the parkway (see Figure 18-5). Parkways will be planted with deciduous street trees. The parkway will be covered with mulch; turf will not be permitted.
D.
All front yard landscaping shall be provided with an automated irrigation system that employs water-conserving irrigation features.
(Ord. No. 579 , § 1, 4-25-2011)
18 - RM ZONE MULTIPLE FAMILY RESIDENTIAL
The purpose of the RM districts is to provide living areas within Woodlake where development is consistent with the Woodlake general plan and is limited to medium and high density concentrations of multi-family dwellings, and where regulations are designed to promote the following:
1.
Encourage a suitable environment for family life, recognizing that a significant part of the multi-family population is adult, including senior citizens;
2.
Provide space for community facilities, including parks, schools, churches and other facilities that will complement the residential environment;
3.
An attractive and unique project that encompasses well-designed buildings with ample landscape and off-street parking;
4.
The conservation of valuable resources ranging from water to energy; and
5.
Housing that is affordable to low- and moderate-income households and to households that have special housing needs.
(Ord. No. 579 , § 1, 4-25-2011)
In order to adequately plan for multi-family development at various densities, the RM district is divided into the following subdistricts: RM-2 (multi-family residential, one unit per three thousand (3,000) square feet) and RM-3 (multi-family residential, one unit per one thousand five hundred (1,500) square feet).
The RM-2 district is consistent with the "medium density" residential designation in Woodlake's land use element; the RM-3 district is consistent with the Element's "high density" residential designation.
(Ord. No. 579 , § 1, 4-25-2011)
A.
Single-family dwellings, duplexes and tri-plexes;
B.
Multi-family complexes;
C.
Senior citizen apartments;
D.
Transitional and supportive housing (six or fewer persons);
E.
Home occupations subject to the requirements detailed in Chapter 17.64;
F.
Small day care homes consistent with Chapter 17.64;
G.
Mobile homes subject to design standards contained in Chapter 17.16;
H.
Licensed group care homes (six or fewer persons) consistent with Chapter 17.64;
I.
Drainage basins;
J.
Water well sites;
K.
Utility facilities, including electrical substations, elevated pressure tanks, and communication equipment buildings; and
L.
Model apartments and rental offices associated with the development of a multi-family development.
(Ord. No. 579 , § 1, 4-25-2011)
A.
Incidental and accessory structures and uses located on the same site as the permitted use including private garages and carports; storage buildings; garden structures, greenhouses; and recreation rooms, hobby shops and swimming pools. Development standards for some of these accessory structures are provided in Chapter 17.64.
B.
Temporary apartment rental office and signs consistent with Chapter 17.69.
C.
Enclosed temporary construction materials storage yards associated with the development of an apartment complex.
(Ord. No. 579 , § 1, 4-25-2011)
The outside placement, parking, storage or stockpiling of equipment, materials, vehicles, furnishings or commodities, not associated with the normal use, maintenance or repair of a residential dwelling or its accessory structures, and including but not limited to farm equipment, porta-potties, picking ladders, agricultural produces, produce boxes and bins, trucks larger than one ton, scrap materials, inoperable vehicles and appliances or furniture.
Outside storage restrictions shall be exempt for persons conducting yard or garage sales that have an appropriate city permit.
(Ord. No. 579 , § 1, 4-25-2011)
The following uses shall be permitted upon the granting of a use permit consistent with Chapter 17.48:
A.
Public and quasi-public uses of an educational or religious type including public and parochial elementary schools, junior high schools, high schools and colleges; nursery schools, nonprofit schools and colleges; churches and other religious institutions;
B.
Public and private charitable institutions, hospitals, convalescent homes, sanitariums, or rest homes for mental, drug or alcoholic cases;
C.
Public uses of an administrative, recreational, pubic service or cultural types including city, county, state or federal administrative centers and courts, libraries, museums, art galleries, police and fire stations and other public buildings, structures and facilities; public playgrounds, parks and community centers;
D.
Rest homes and nursing homes; boardinghouses and rooming houses;
E.
Labor camps;
F.
Emergency shelters; and
G.
Bed and breakfast.
(Ord. No. 579 , § 1, 4-25-2011)
No multi-family uses may be established on any lot or site in this district until a site plan has been submitted and approved consistent with Chapter 17.54.
(Ord. No. 579 , § 1, 4-25-2011)
Also illustrated in Exhibit 18-1: RM Zone Development Standards.
A.
Unit Density. The maximum unit density for Woodlake's multi-family residential districts are as follows:
B.
Lot Frontage, Depth and Area.
1.
The minimum lot frontage for each of Woodlake's multi-family residential districts are as follows:
2.
The minimum lot depth for each of Woodlake's multi-family residential districts are as follows:
Figure 18-1: RM Zone Development Standards
3.
The minimum area of all newly-created lots for each of Woodlake's multi-family residential districts are as follows:
C.
Building Height. The maximum height of residential structures shall be thirty-five (35) feet; the maximum height of accessory structures shall be fifteen (15) feet.
D.
Lot Coverage.
E.
Yard Requirements.
1.
Front Yard:
On a lot situated between residential lots with buildings that are set back less than the minimum distance required by this section, the minimum front yard set back shall be the average of the front yard set backs of the adjoining lots.
2.
Side Yard:
On the street side of a corner lot, the side yard setback shall be one-half the required front yard set back.
Where an interior lot is less than fifty (50) feet in width, each side yard shall be a minimum of ten percent of the lot width, or three feet, whichever is greater.
3.
Rear Yard:
4.
Garage/Carport Setback: A garage or carport that faces a public street shall be set back a minimum of twenty (20) feet from the back of sidewalk or property line, whichever distance is greater.
5.
Minimum distance between buildings on the same lot: The minimum distance between a structure used for human habitation and another structure (such as another dwelling, detached garage, carport, or storage shed, etc.) shall be ten feet.
6.
Exceptions:
a.
Architectural features, including eaves, sills, chimneys, cornices, and bay windows may extend up to thirty (30) inches into a required side yard.
b.
Uncovered, unenclosed porches, platforms or landings that do not extend above the first floor elevation may extend a maximum of six feet into a front or rear yard setback area. Railings up to thirty (30) inches in height may be installed on any of these features.
(Ord. No. 579 , § 1, 4-25-2011)
Fences, Walls and Hedges shall be consistent with the requirements detailed in Chapter 17.67 of the Woodlake Municipal Code.
(Ord. No. 579 , § 1, 4-25-2011; Ord. No. 628 , § 2, 1-13-2020)
A.
For multi-family dwellings, a minimum of 1.5 parking stalls shall be required. Half of these stalls shall be covered. All parking spaces, driveways and parking lots shall have a concrete or asphalt surface.
Where a carport or garage is open to a public street, a driveway of at least twenty (20) feet shall be provided between the face of the garage and the back of sidewalk or property line, whichever distance is greater.
B.
Non-residential uses in this district shall provide off-street parking consistent with Chapter 17.68.
(Ord. No. 579 , § 1, 4-25-2011)
Signs shall be consistent with the requirements detailed in Chapter 17.69.
(Ord. No. 579 , § 1, 4-25-2011)
All multi-family projects that contain sixteen (16) or more units shall be required to provide an on-site manager.
(Ord. No. 579 , § 1, 4-25-2011)
The following standards shall apply to all multi-family developments, excluding duplexes.
A.
The architectural design of multi-family developments to the best extent possible should be compatible with adjacent residential neighborhoods. Compatibility may involve the use of materials, color, scale, roof pitch, and other physical features that would assist in blending the new multi-family development with surrounding residential uses.
B.
The architectural design of multi-family developments that are not adjacent to or within existing residential neighborhood shall consider the following design standards:
1.
Long, unbroken building facades and box-like building forms should be discouraged. Building facades should be varied by alternating building planes, building material, color and building heights (see Figure 18-2). Other approaches to providing interesting multi-family structures could involve alternating the patterns of window and door opening; the use of projections such as balconies, porches and awnings; and changing setbacks and softening the building facade with tree plantings.
2.
Setbacks should be varied with individual structures.
3.
The roof lines of multi-family structures should be altered to provide a more interesting horizontal view.
4.
There should only be a maximum of two adjacent multi-family units with identical wall and roof line planes.
5.
It is important that door and window openings be articulated on the face of the multi-family structure. Articulation can include framing, insets or shutters for windows and insets, framing and color for doorways.
6.
Materials used for multi-family developments should be durable and of low-maintenance. Where possible, exterior siding should provide a distinctive appearance, such as river rock, brick, or flagstone.
7.
Stairways should be designed as an integral part of the overall multi-family development. Materials used on the building should be incorporated into the stairway design (see Figure 18-3). Stairways should not be a dominant exterior feature on the building but should be sited so that they are not visually prominent.
Figure 18-2: Architectural Design Concepts
C.
Parking lots and carports or garages should be designed to blend in with the overall multi-family project.
1.
Long, unbroken rows of parking spaces are discouraged. Where possible, these rows should be broken by landscaped islands, buildings, or garages.
2.
Carports should contain design elements that make the structures visually interesting, such as finished roofs or articulated support beams.
3.
Parking lots should be screened from adjacent properties with a seven-foot solid block wall that is softened with landscaping.
D.
Special design treatment should be given to the entryways and street corners of multi-family projects.
1.
The street corners of multi-family projects should be enhanced visually with features like landscaping, walls, lighting, fountains, trellises, signage, public art, etc.
2.
Project entryways should be given special treatment such as stamped concrete driveways, metal gates with pilasters or landscaped medians.
E.
All common areas shall be provided with landscaping and an automated irrigation system. Landscaping shall be consistent with Chapter 17.66.
F.
All trash enclosures shall be surrounded by a six-foot solid block wall and a metal gate. A trellis or arbor shall be constructed over the trash enclosure. The exterior to the enclosure shall be landscaped.
G.
All roof-mounted mechanical equipment shall be screened from view.
H.
Where a multi-family development abuts a single-family use or a commercial use, a seven-foot solid block wall shall be constructed along the property line common to the two land uses.
(Ord. No. 579 , § 1, 4-25-2011)
A.
To the greatest extent possible, the multi-family buildings should run east and west to take advantage of passive solar design opportunities (see Figure 18-4).
B.
All ground-mounted heating/cooling units shall be located on the east side of a building that fronts onto an east/west roadway, and on the north side of a building that fronts onto a north/south roadway (this location feature will conserve energy).
C.
The landscaping plan for the multi-family complex should plant deciduous trees on the south and west sides of the residential complex (this location design feature will conserve energy).
Figure 18-4: Energy Conservation
(Ord. No. 579 , § 1, 4-25-2011)
A.
All residential projects that contain more than two thousand five hundred (2,500) square feet of landscaped area shall comply with the regulations contained in Chapter 17.66.
B.
Not more than fifty (50) percent of the front yard landscaping shall be devoted to turf. Shrubs planted in the front yard shall be drought-tolerant species (these design features will conserve water).
C.
All parkways shall be five feet wide, shall be depressed and shall be provided with a drip irrigation line that runs from the multi-family development to the parkway (see Figure 18-5). Parkways will be planted with deciduous street trees. The parkway will be covered with mulch; turf will not be permitted.
D.
All front yard landscaping shall be provided with an automated irrigation system that employs water-conserving irrigation features.
(Ord. No. 579 , § 1, 4-25-2011)