REGULATIONS APPLYING TO SOME OR ALL DISTRICTS
The purpose of this Chapter is to prescribe development and site regulations that apply, except where specifically stated, to development in all districts. These standards will be used in conjunction with the standards for each zoning district located in Division II, Zoning and Overlay Districts. In any case of conflict, the standards specific to the zoning district will override these regulations.
(a)
Generally. Where a lot is greater than one acre in size and is divided by a district boundary, the regulations applicable to each district shall be applied to the area within the district, and no use, other than parking serving a principal use on the site, shall be located in a district in which it is not a permitted or conditionally permitted use. For lots less than one acre in size the regulations in Section 11.04.040.C.2, Zoning Boundary Interpretations shall apply.
(b)
Accessory facilities. Accessory landscaping, fences, screening or retaining walls, and usable open space may be located on the lot without regard for zone boundaries.
(c)
Density and floor area. The maximum permitted number of living units or maximum floor area, if any, shall be calculated according to the lot area within each zoning district and the corresponding density ratio and floor area ratio for the district. The resulting maximum permitted number of living units or amount of floor area may be distributed on the lot without regard for district boundaries, as long as all portions of the project comply with the development standards of the district in which they are located and all other provisions of this Section.
(d)
Minimum lot area, width, and frontage. The minimum lot area, width, and frontage requirements of the zoning district that covers the greatest portion of the lot area shall apply to the entire lot. If the lot area is divided equally between two or more zone districts, the requirements of the district with greater minimum lot area, width, or frontage shall apply to the entire lot.
(e)
Exceptions. If more than 60 percent of a lot is located in one zoning district, a qualified applicant may apply for and the Planning Commission may consider a Conditional Use Permit in order to request exceptions to the provisions of this Section (e.g., to apply the standards of one of the districts to a greater area of the site).
(a)
Residential accessory structures. Residential accessory structures include structures that are customarily related to a residence, including garages, greenhouses, storage sheds, studios, play equipment, swimming pools, spas, workshops, detached covered decks and patios, detached uncovered decks and patios 18 inches in height or greater, and similar structures. Regulations for residential second units are located in Section 11.32.030, Accessory Dwelling Units.
(b)
Non-residential accessory structures. In addition to the primary structures associated with permitted uses, each use classification may include accessory structures which are necessarily and customarily associated with, and are appropriate, incidental, and subordinate to, such primary structures and uses. It shall be the responsibility of the Planning Director to determine if a proposed accessory structure is necessarily and customarily associated with, and is appropriate, incidental, and subordinate to the primary structure or use, based on the Planning Director's evaluation of whether the proposed accessory structure is necessary or customarily associated with the use for which the development was constructed. Determinations by the Planning Director shall be subject to appeal pursuant to Section 11.53.150, Appeals and Calls for Review. All accessory structures shall be located in compliance with all other applicable requirements of the zone district in which they are located and any other permits required (e.g. design review permit in commercial districts).
(c)
Development standards. Accessory structures shall be developed in accordance with the following standards:
(1)
Relation to existing structures. A detached accessory building may only be constructed on a lot on which there is a permitted main building or use to which the accessory building is related. However, an accessory building may be constructed prior to a permitted main building and used for not more than one year in connection with the construction of the main building provided that a building permit is obtained for the entire project, including the accessory building, prior to the start of any construction and a compliance bond has been obtained. The accessory structure will not be issued a building permit final until final occupancy has been issued for the main building.
(2)
Size. Accessory structures count towards the maximum lot coverage or floor area ratio (FAR) permitted on a site. Within the valley growth boundary, excluding agricultural uses, no single accessory structures shall exceed the ground floor area of the primary building.
(3)
Levee setback. Structures located in proximity to a levee shall meet the requirements of Section 11.23.030.D, Setbacks Adjacent to a Levee.
(4)
Setbacks. Accessory structures shall meet the setback requirements established by the zoned district they are located in.
a.
Setback exemptions: Uncovered decks and patios under 18 inches in height; one accessory structure less than eight feet in height and less than 120 square feet in area. Pool and spas shall meet setback requirements of Section 11.19.100 Swimming Pools and Spas. Fences shall meet setback requirements of Section 11.19.040 Fences and Walls. Within the valley growth boundary no accessory structures shall be permitted within the front yard setback area with the exception of decks, patios, and fences (see Section 11.19.040 Fences and Walls).
(a)
Applicability. The standards of this Section apply to fences, freestanding walls, dense hedges, and similar structures. Walls and fences, depending on their height, may require approval of a building permit. Walls and fences within non-residential districts (excluding natural resource and agricultural districts) are further regulated by the County's design guidelines.
(b)
Maximum height. Fences, walls, hedges, and similar structures shall be limited to the maximum heights stated below. Fences and walls depending on height and construction style may require a building permit.
(1)
Front yards and street side yards. Within the valley growth boundary the required front and corner side yards, or along the exterior boundaries of such yards; fences, hedges, and freestanding walls may not exceed a height of three feet. Fences may be placed at the back of the sidewalk if they achieve a height of four feet provided that the top foot or entire fence height is of open or lattice-type design and achieves at least 25 percent transparency. For non-residential uses a taller fence or wall height may be permitted when a business need can be demonstrated to the Planning Director to allow additional height through a waiver.
a.
Outside the front and street side yard area (setback is established by zone district) fences, hedges, and walls up to eight feet in height may be permitted. Fences taller than eight feet in height may be permitted for noise attenuation as determined by a noise analysis or in non-residential zones when a demonstrated security need can be demonstrated to the Planning Director through a waiver.
b.
Within the residential districts of the valley growth boundary, fences up to eight feet in height may be placed five feet from the back of the sidewalk or ten feet from the back of the right-of-way line from the street side of a corner lot.
Outside the valley growth boundary or on agricultural properties within the valley growth boundary, fencing along the front and street side yard property lines may be open "agricultural style" fencing up to six feet in height unless a need can be made to the Planning Director to allow additional height through a waiver.
(2)
Decorative features. Within the valley growth boundary, one pedestrian entry gateway, trellis, or other decorative structure per street frontage or 100 feet of linear frontage is permitted in the required front or corner side yard of each lot, provided that the maximum height or width of the structure does not exceed ten feet. Such decorative feature shall not have any solid obstruction that exceeds two feet in diameter between the height of three and ten feet. Decorative walls in excess of three feet shall be located outside of the setback area in front of the house and shall meet all other standards of this Section. Gates and decorative features at vehicle entries may exceed ten feet in width, but shall be designed to ensure adequate visual clearance is maintained as determined by the Public Works Director.
(3)
Interior side and rear yards. No fence, hedge, or freestanding wall within or along the exterior boundary of the required side or rear yards shall exceed a height of eight feet unless required for noise attenuation as determined by a noise analysis or in non-residential zones when a demonstrated security need can be demonstrated to the Planning Director through a waiver.
(4)
Main building area. The main building area is the portion of the lot that is outside any required setback. Within the main building area, the maximum height for fences and walls is eight feet except walls that are necessary for noise attenuation may be higher based on the noise analysis.
(c)
Setback from right-of-way. Within the valley growth boundary, fences, walls and hedges shall be set back a minimum of five feet from an adjacent right-of-way line. In areas with detached sidewalks the fence shall not be any closer than back of the sidewalk. The area adjacent to the fence or wall shall be landscaped. Outside the valley growth boundary, fences, walls, and hedges may be located at the property line so long as they are outside of any adjacent right-of-way or access easement and are not in conflict with a sight distance triangle of a road or driveway.
(d)
Fences within the right-of-way. Fences are prohibited within the County right-of-way. The Public Works Department reserves the right to remove any fences placed within the County right-of-way.
Figure 11.19.040: Fences and Walls
(e)
Design and materials. Fencing visible from a street shall be treated as an integral part of the architecture of the site, with materials, colors, and detailing that is compatible with the buildings.
(1)
Limitation on hazardous fencing materials. The use of barbed wire, razor wire, ultra-barrier, electrified, and other hazardous fencing is not permitted, with the following exceptions:
a.
On the site of a permitted agricultural use if needed for livestock or ranch operations.
b.
If such fencing is required by any law or regulation of the County, the State of California, the federal government, or other public agency.
c.
Upon approval of the Zoning Administrator when a business has demonstrated it is necessary for the security of their business operation. Fencing shall be adequately screened from the street and any adjacent residential or mixed-use districts.
(2)
Limitations on concrete block. Within the valley growth boundary plain, concrete block is not permitted as a fencing material if visible from a public street. Plain concrete block may be permitted when finished with stucco and capped with a decorative cap. Split face and other types of architectural block do not need to be finished with stucco.
(3)
Limitations on chain link. Within the valley growth boundary, chain link fencing is prohibited for commercial projects, production homes, and multi-family residential projects (four or more dwelling units). In industrial zone districts, chain link fences must not be visible from public view unless they are screened by existing terrain or vegetation.
(f)
Production homes. Production houses shall be constructed with steel posts.
(g)
Visibility at intersections. Notwithstanding any other provisions of this Section, fences and walls shall comply with the visibility standards of Section 11.19.130, Visibility at Intersections and Driveways.
(h)
Building permits. Fences over seven feet in height shall require a building permit.
(i)
Waivers. The requirements of this Section may be waived or modified through approval of a waiver or variance where the decision making authority finds the proposed fence design is consistent with the character of the neighborhood in which it is located. Waivers allow the maximum height of fences and freestanding walls, up to one foot over allowed height and for placement up to 20 percent of the required yard/setback requirement.
(j)
Non-conforming fences.
(1)
Continuation and maintenance. A non-conforming fence may be continued, and may be maintained, except as provided in Section 11.19.040.D.
(2)
Maintenance or repair of existing nonconforming fence. Maintenance or repair, including structural repairs, may be made to any non-conforming fence or portions thereof if the repairs do not result in a different condition of conformity, or if the repairs bring the fence into compliance with this Section.
(3)
Reconstruction of damaged nonconforming fences. A property owner may reconstruct a non-conforming fence damaged by fire or other calamity if the reconstructed fence is in conformity with this Section.
(4)
Removal of worn nonconforming fence. If because of normal wear and tear a non-conforming fence is no longer fully upright or is no longer serviceable, the property owner either shall remove it or shall replace it with a new fence in conformity with this Chapter.
The height of structures shall not exceed the standards established by the applicable zoning district except as provided below:
(1)
Projections. Chimneys not over six feet in width, cupolas, flagpoles, monuments, steeples, fire and parapet walls, roof equipment, antennas, and similar structures and necessary appurtenances covering not more than 20 percent of the top floor roof area to which they are accessory, may exceed maximum permitted height standards by eight feet. Exceptions may be granted with the approval of a waiver or variance.
Figure 11.19.050: Height Exceptions—Projections
(2)
Support structures for agricultural and industrial uses. Structures such as silos and water tanks associated with a permitted agricultural use in any district and structures such as smokestacks, vents, and mechanical equipment associated with a permitted use located in an Industrial District may exceed maximum permitted height standards provided the height of the structure does not exceed 75 feet. Exceptions may be granted with the approval of a waiver or variance.
(3)
Wind energy systems. Structures associated with wind energy systems are subject to the height limitations of Section 11.32.280, Wind Energy Systems.
(4)
Communications facilities. Structures associated with communication facilities are subject to the height limitations of Section 11.32.300, Wireless Communications Facilities.
(5)
Airport height restrictions. Notwithstanding the provisions of this Section, all structures must comply with any height restrictions of the Airport Overlay District or any standard of the Federal Aviation Administration.
(a)
Applicability. The standards of this Section apply to all new multi-family residential buildings and non-residential development and additions that expand existing floor area by ten percent or more.
(b)
General standards.
(1)
Multi-unit residential buildings. Aisles, passageways, and recesses related to and within the building complex shall be illuminated with an intensity of at least 0.25 foot-candles or equivalent measurement at the ground level during the hours of darkness. Lighting devices shall be protected by weather- and vandal-resistant covers.
(2)
Nonresidential buildings. All exterior doors, during the hours of darkness, shall be illuminated with a minimum of 0.5 foot-candle of light (or equivalent measurement).
(3)
Parking lots. Parking areas shall contain lighting according to the requirements of Section 11.25.100, Design Standards for Parking Lots.
(4)
Maximum height. Lighting fixtures shall not exceed the maximum heights specified in Table 11.19.060, Maximum Height of Lighting Fixtures.
(c)
Control of outdoor artificial light. This Subsection is intended to minimize outdoor artificial light that may have a detrimental effect and reduce the unnecessary illumination of adjacent properties.
(1)
Exemptions. The following types of lighting fixtures are exempt from the requirements of this Section:
a.
Prior installation. All light fixtures installed prior to the effective date of this ordinance, unless 50 percent or more of the light fixtures on the premises are replaced.
b.
Construction and emergency lighting. All construction or emergency lighting fixtures provided they are temporary and are discontinued immediately upon completion of the construction work or abatement of the emergency.
c.
Seasonal lighting. Seasonal lighting displays related to cultural or religious celebrations.
d.
Street lights. Lights installed by a public utility company, County, or developer on behalf of utility or County to provide adequate street illumination.
(2)
Prohibited lighting. The following types of exterior lighting are prohibited:
a.
Drop-down lenses;
b.
Mercury vapor lights; and
c.
Searchlights (excluding emergency/safety response activities), laser lights, or any other lighting that flashes, blinks, alternates, or moves.
(3)
Fixture type. All lighting fixtures shall be shielded so as not to produce obtrusive glare onto the public right-of-way or adjoining properties. All luminaries shall meet the most recently adopted criteria of the Illuminating Engineering Society of North America (IESNA) for "Cut Off" or "Full Cut Off" luminaries. In the Figure below, cd refers to the candela or measurement of luminous intensity based on the direction or angle of the light projection.
Figure 11.19.060(c)(3): Fixture Type
(4)
Light trespass. Lights shall be placed to deflect light away from adjacent properties and public streets, and to prevent adverse interference with the normal operation or enjoyment of surrounding properties.
a.
Direct or sky-reflected glare from floodlights shall not be directed into any other property or street.
b.
No light or combination of lights, or activity shall cast light exceeding one foot candle onto a public street, with the illumination level measured at the centerline of the street.
c.
No light, combination of lights, or activity shall cast light exceeding 0.5 foot candle onto a residentially zoned property, or any property containing residential uses.
Figure 11.19.060(c)(4): Light Trespass
(5)
Required documentation. Photometric data from lighting manufacturers shall be submitted to the Planning Department by the project applicant to demonstrate that the lighting requirements have been satisfied.
(6)
Alternate materials and methods of installation. Design, material, or method of installation not specifically prescribed by this Section may be approved provided the proposed design, material, or method provides approximate equivalence to the specific requirements of this Section or is otherwise satisfactory and complies with the intent of these provisions.
Within the valley growth boundary, open storage of goods, materials, machines, equipment, and vehicles or parts outside of a building for more than 72 hours shall conform to the standards of this Section. The regulations of this Section do not apply to non-commercial vehicles parked in the driveway of a residential use, commercial and business vehicles parked in an approved parking area of an approved non-residential use or temporary storage of construction materials reasonably required for construction work on the premises pursuant to a valid building permit.
(1)
Applicability.
a.
Zoning Districts where Outdoor Storage is Principally Permitted shall apply for a Zoning Clearance and Landscape Review and Inspection with the Planning Department prior to operation.
b.
The outdoor storage of automobiles, boats, and RVs for personal uses shall be considered Personal Storage. Refer to Section 11.32.200, Personal Storage, for standards.
(2)
Location. Outdoor storage shall be located outside of all required front and street side setbacks or any required landscape area.
(3)
Screening. Outdoor storage areas shall be completely screened within a fenced in area so as not to be visible from any public street or freeway; residential district; or publicly accessible open space area, parking area, access driveway, or similar thoroughfare.
(4)
Surfacing.
a.
In non-residential districts, outdoor storage areas shall be surfaced with an all weather surface. Such surfacing shall be permanently maintained free of structural defects and shall conform to all applicable federal and State air and water quality standards. This requirement does not apply to outdoor storage associated with permitted agricultural uses or single family residences.
b.
Outdoor storage of hazardous materials shall require a roof or awning over the materials and either a dead-end sump to contain spills or containment in the form of berms, dikes, or curbs. All hazardous materials regulated by the Land Enforcement Agency (LEA) or Certified Unified Program Agency (CUPA), shall be placed on a surface as deemed appropriate by the permitting agency. In addition, the surface shall conform to all applicable federal and State air and water quality standards.
(5)
Hazardous materials. The operation shall have policies and procedures in place that prohibits the keeping of any material that is considered hazardous under U.S. or California law.
(6)
Storage and accumulation of junk, garbage, and rubbish. It shall be unlawful for any person to store or keep, or permit others to store or keep, junk, garbage, and/or rubbish including, but not limited to, scrap metals or other scrap materials, on any lot or parcel, or any portion thereof, in any zone.
(a)
Applicability. The standards of this Section apply to all new development within the valley growth boundary (excluding single family residential) and additions that expand existing floor area by 25 percent or more.
(b)
Mechanical and electrical equipment. All exterior mechanical and electrical equipment shall be screened or incorporated into the design of buildings to reduce visibility from the street, highway, or adjacent residential districts.
(1)
Ground-mounted HVAC units shall be located away from public activity areas and screened from public view through landscaping and/or screen walls.
(2)
Other ground or wall mounted equipment, public utility infrastructure and other utility components shall be oriented away from public view to the extent possible and screened with evergreen shrubs or placed in an enclosure that is designed to blend with surrounding environment to the extent allowed by the utilities.
(3)
Screening for equipment shall be integrated into the building and roof design and compatible materials, colors and forms shall be used. Wood lattice or fence like coverings are inappropriate for roof mounted screening.
(4)
Roof mounted equipment, including but not limited to air conditioners, fans, vents, and antennas, shall be setback from the roof edge, or placed behind a parapet or in a well so that they are not visible to motorists or pedestrians.
(5)
Outdoor storage areas shall be screened as provided in Section 11.19.070, Outdoor Storage.
(c)
Common property lines (screening between different land uses).
(1)
Required areas. A landscape buffer or screening wall consistent with the provisions of this Section shall be provided for the following uses at the time of new construction or expansion of buildings:
a.
Residential subdivisions: Residential subdivisions of five or more lots adjacent to residential development exceeding ten units/acre, any nonresidential use, or an unloaded urban collector or major arterial roadway.
b.
Multi-unit residential uses: Multi-unit residential uses exceeding ten units/acre adjacent to a single unit dwelling or duplex, any industrial use, or an unloaded urban collector or major arterial roadway.
c.
Nonresidential uses: Nonresidential uses adjacent to any residential district, public park, or open space.
(2)
Location. Landscape buffers and screening walls shall follow the lot line of the lot to be screened, or shall be so arranged within the boundaries of the lot so as to substantially hide from adjoining properties the building, facility, or activity required to be screened.
a.
Screening walls required. Screening walls are required between residential and industrial districts or residential districts adjacent to unloaded urban roadways. When located along roadways, short street blocks and/or pedestrian paseos shall be incorporated into project design. Where screening walls are required, they are in addition to any required landscaping as identified in Chapter 11.24, Landscape.
b.
In other locations, walls that prevent convenient access between residential districts and parks, trails, public transit or commercial and public services are prohibited.
(3)
Height. Landscape buffers should reach a minimum of five feet in height at maturity. Screening walls shall be a minimum of six feet and maximum of eight feet in height, unless otherwise specified through a discretionary planning entitlement.
a.
Landscape buffers shall be comprised of a view-obscuring arrangement of evergreen and deciduous trees, shrubs and similar vegetation not less than five feet in height at maturity. Evergreens shall comprise at least 75 percent of the trees and plants utilized. Vegetation shall be planted at intervals that emphasize massing and form rather than individual or small groupings of shrubs and trees.
b.
Screening walls shall be constructed of stucco, decorative block, concrete panel, or other substantially equivalent material. Chain-link fencing does not fulfill the screening wall requirement.
(4)
Berms. An earth berm may be used in combination with the above types of landscape buffers and screening walls, but not more than two-thirds of the required height of such screening may be provided by the berm.
(5)
Maintenance. Landscape buffers and screening walls shall be maintained by property owner in good repair, including but not limited to replacement of dead or diseased vegetation, painting, graffiti removal, and shall be kept free of litter or advertising.
(6)
Waivers and modifications. The Zoning Administrator may grant a waiver or modification of the screening requirements pursuant to Chapter 11.60, Waivers and Modifications.
(a)
Buffers and setbacks between agricultural and non-agricultural uses and districts. The purpose of agricultural buffers and setbacks is to provide for the long-term viability of agricultural operations and to minimize potential conflicts between agricultural uses and non-agricultural development and uses.
(1)
Permanent agricultural buffers. Permanent agricultural buffers are only required at the edges of rural community boundary areas and the valley growth boundary. The minimum buffer width is based on the type of agricultural use as identified in Table 11.19.090-A.
a.
Agricultural buffers should be designed to accommodate drainage, trails, roads, other facilities or infrastructure, community gardens, native landscaping, and other uses that would be compatible with ongoing agricultural operations and provide valuable services or amenities. Windrows, berms, or other types of barriers shall be incorporated into the buffer design to reduce impacts from adjacent agricultural operations.
b.
Where buffers are required the buffer shall be located on the non-agricultural property in instances where the development is occurring adjacent to the rural community boundary or valley growth boundary.
(2)
Reductions in buffer width. Agricultural buffers may be reduced with minor use permit approval where the decision-making authority determines, in consultation with the Agricultural Commissioner that:
a.
Specific site characteristics exist such as topography, prevailing winds, vegetation, and other site features provide adequate buffering such that the required setback is not necessary to promote and protect agriculture and protect public health and safety; or
b.
Site constraints such as size and configuration are such that the required setback is infeasible and the reduced setback provides the maximum feasible buffer from the agricultural district or use.
(3)
Exclusions. Permanent buffers are not required in areas adjacent to planned urban development within the valley growth boundary or when adjacent to existing rural residential or agricultural rural residential uses where the parcel sizes are primarily five acres or less in size.
(4)
Setbacks for urban commercial agriculture. Where new commercial agricultural operations are proposed within the valley growth boundary, setbacks and/or operational restrictions shall be required to reduce impacts of the agricultural operation on non-agricultural uses and districts. The width of the setback and/or operational restrictions shall be as determined through the conditional use permit and shall be based on the type of agricultural operation, site specific characteristics, adjacent uses and districts, and recommendations from the Agricultural Commissioner. Where setbacks are required they shall be provided within the project boundary of the commercial agricultural operation.
(5)
Buffer management plan. Where agricultural buffers or setbacks are required they shall be maintained in accordance with a buffer management plan acceptable to and approved by the County. Agricultural buffer management plans shall include provisions for long-term maintenance of improvements and facilities that will not result in a fiscal impact on the County. Such plans shall, at a minimum, address the following:
a.
A description of site conditions such as vegetation and habitat type, natural and man-made features, and other characteristics of the site;
b.
Grass and brush clearing for fire fuel management, as required by site conditions;
c.
Erosion control;
d.
Fencing if required for the protection of resources;
e.
Any proposed recreational activities or facilities; and
f.
Any natural resource management activities and uses.
(b)
Setbacks adjacent to the landside of levees. Setbacks from levees shall be as determined by the levee maintenance district, but in no case shall be less than 50 feet from the toe of levees for new structures, fences, or pools to preserve the long-term ability to conduct inspections, perform maintenance, fight floods, and allow room for future minor changes to levee configurations. Additional requirements pertaining to grading activities adjacent to levees is provided in Chapter 11.23, Grading, Drainage, and Erosion Control.
(c)
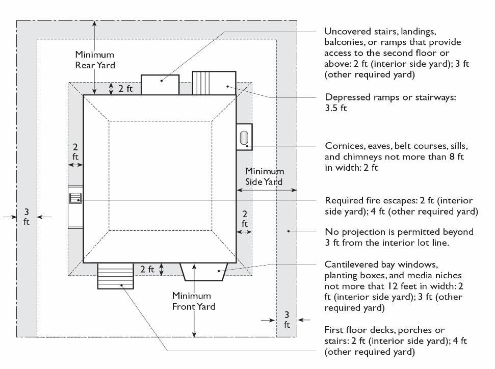
Allowed building projections. Building projections may extend into required setback areas, according to the standards of Table 11.19.090(b), Allowed Building Projections into Setbacks.
(1)
Limitations. The "Additional Standards and Limitations" column of Table 11.19.090(b) states any dimensional, area, or other limitations that apply to allowed projections into setbacks. In addition, the following limitations apply to all projections into setbacks:
a.
No projection may extend into a public utility easement.
b.
No projection may extend closer than three feet to an interior lot line.
c.
No projection may extend closer than six feet to a building or structure on an adjacent lot.
d.
Projections are subject to all applicable requirements of the California Building Code.
e.
Any applicable lot coverage limitations of the district must be met.
Figure 11.19.090(b): Allowed Building Projections into Setbacks
Swimming pools and spas shall comply with Chapter 10.40, Swimming Pool Safety Act, of the County Code, as well as the following standards:
(1)
Within the valley growth boundary, swimming pools, spas or associated filtration equipment and pumps shall not be located in the front yard area or within the street side yard setbacks.
(2)
The outside wall of the water-containing portion of any swimming pool or spa shall be located at least five feet from all interior side and rear lot lines for above ground pools or spas and three feet for in ground pools or spas.
(a)
Applicability. Solid waste and recycling-container enclosures are required for new multi-family dwellings consisting of four or more dwelling units and for all office, and retail developments. Compliance with the standards of this Section is required in conjunction with all new development and with additions that expand existing floor area by ten percent or more.
(b)
Alternatives. Projects with ten or fewer residential units may have individual trash containers for each unit, provided that there is a designated screened location for each individual trash container adjacent to the dwelling unit and provided that solid waste and recycling containers for each unit are brought to the curbside for regular weekly or bi-weekly collection.
(c)
Location. All enclosures shall comply with the California Fire Code and shall meet the following requirements unless it is demonstrated that they are infeasible as determined by the Zoning Administrator.
(1)
The solid waste and recycling storage area shall not be located within any required front yard, street side yard, any required parking and landscaped areas, or any other area required by this Code to be constructed or maintained unencumbered according to fire and other applicable building and public safety codes.
(2)
Solid waste and recycling areas shall be consolidated to minimize the number of collection sites and located so as to reasonably equalize the distance from the building spaces they serve. There should be a minimum of one solid waste and recycling enclosure per 50 units.
(3)
Solid waste and recycling storage areas shall be accessible to haulers. Storage areas shall be located so that the trucks and equipment used by the County or its contracted solid waste and recycling collector(s) have sufficient maneuvering areas and, if feasible, so that the collection equipment can avoid backing-up. Project applicants are responsible for procuring current equipment size and turning radius from the County or its contracted solid waste and recycling collector(s).
(d)
Materials, construction, and design.
(1)
Minimum height of screening. Solid waste and recycling storage areas located outside or on the exterior of any building shall be screened with a solid enclosure at least five feet in height, except for a gated opening.
(2)
Enclosure material. Enclosure material shall be compatible to the main structure(s).
(3)
Access to enclosure from residential projects. Each solid waste and recycling enclosure serving a residential project shall be designed to allow walk-in access without having to open the main enclosure gate.
(4)
Enclosure pad. Pads shall be a minimum of reinforced four-inch-thick concrete.
(5)
Drainage. Drainage from neighboring roofs and pavement shall be diverted away from the trash collection area. No storm drains shall be in the immediate vicinity of trash storage areas.
(6)
Landscaping. The perimeter of the recycling and trash enclosure shall be planted, if feasible, with drought resistant landscaping, including a combination of shrubs and/or climbing evergreen vines, except for a gated opening.
(7)
Clear zone. The area in front of and surrounding all enclosure types shall be kept clear of obstructions, and shall be painted, striped, and marked "No Parking."
All electrical, telephone, cable television, and similar distribution lines providing direct service to a development site shall be installed underground within the site. This requirement applies to development within the valley growth boundary and may be waived by the Community Development and Services Agency Director upon determining that underground installation is infeasible.
(a)
Street intersections. Vegetation and structures may not exceed a height of three feet within the sight distance triangular area formed by the intersecting curb lines (or edge of pavement when no curbs exist) and a line joining points on these curb lines at a distance of 25 feet along both lines from their intersection, unless an exception is obtained from the Public Works Director. Existing trees, or any portions thereof, that are located within this sight distance triangle shall have a clearance of seven feet high minimum between the lowest portion of the canopy and the sidewalk. New trees shall not be planted within the sight distance triangle.
Figure 11.19.130: Visibility at Intersections
(b)
Exempt structures and plantings. The regulations of this Section do not apply to public utility poles official warning signs or signals; or plant species of open growth habits and not planted in the form of a hedge that are so planted and trimmed as to leave at all seasons a clear and unobstructed cross view; traffic control devices or places where the contour of the ground is such that there can be no cross visibility at the intersection.
(Ord. No. 1556; Ord. No. 1613; Ord. No. 1624)
Before obtaining any building permits in the County, property owners must demonstrate legal access to the subject parcel.
The Board of Supervisors finds that it is in the public's interest to preserve and protect agricultural and mining land and operations within the County and to specifically protect these lands for exclusive agricultural and mining use.
(1)
Where non-agricultural or non-mining land uses, particularly residential and commercial development, extend onto agricultural and mining lands or exist side by side with these operations, they are frequently the subject of nuisance complaints. As a result, some agricultural and mining operations are forced to cease or curtail their operations and many others are discouraged from making investments in improvements to their operations, to the detriment of the economic viability of the County's agricultural and mining industries as a whole. Therefore, it is the purpose and intent of this Chapter to reduce the loss to the County of its agricultural and mining resources by limiting the circumstances under which properly conducted agricultural and mining operations may be considered a nuisance;
(2)
It is the further purpose and intent of this Chapter to promote a good-neighbor policy by requiring notification of owners, purchasers, residents, and users of property adjacent to or near agricultural and mining operations of the inherent potential problems associated with being located near such operations, including, without limitation, noise, vibrations, odors, fumes, dust, smoke, insects, operation of machinery during any time of day or night, storage and disposal of manure, and ground or aerial application of fertilizers, soil amendments, seeds and pesticides. It is intended that, through mandatory disclosures, owners, purchasers, residents and users will better understand the impact of living or working near agricultural operations and be prepared to accept attendant conditions from properly conducted agricultural and mining operations as a normal and necessary aspect of living in a county with a strong rural character and an active agricultural and mining sector;
(3)
It is also the intent of the County to balance the rights of mining operators and farmers with the rights of non-farmers who own, occupy, or use land within the valley growth boundary of the County.
(a)
No agricultural or mining operation conducted or maintained on those lands zoned or designated for such use (agricultural districts, extractive district, and timber production district), or currently so used for agricultural or mining in a manner consistent with proper and accepted customs and standards, as established and followed by similar operations in the County, shall be or become a nuisance for purposes of this Code or County regulations if it was not a nuisance when it began. The provisions of this Section shall not apply where a nuisance results from the negligent or improper management or operation of an agricultural or mining operation.
(b)
This Section shall not invalidate any provision contained in the Health and Safety Code, Fish and Game Code, Food and Agricultural Code, or Division 7 (commencing with Section 13000) of the Water Code of the State of California, if the agricultural or mining activity, operation, or facility, or appurtenances thereof, constitutes a nuisance, public or private, as specifically defined or described in any such provision.
(c)
This Section shall not apply to lands within the valley growth boundary that are converted from agricultural zoning designations to urban zoning designations or new commercial agriculture operations located within urban areas.
(d)
This Section is not to be construed so as to modify or abridge the state law set out in the California Civil Code relative to nuisances, but rather it is only to be utilized in the interpretation and enforcement of the provisions of the County ordinances and regulations.
This Chapter shall apply to quit claim deeds, grant deeds, land sale contracts, and leases executed after the effective date of this Chapter affecting property within the unincorporated area of the County specified herein.
(a)
Consumer disclosure by seller. A person who is acting as an agent for the seller or lessor of real property located in the County or the seller or lessor of real property if he or she is acting without an agent shall disclose to the prospective purchaser that:
"The property described herein is located in the County of Yuba, which is an agricultural and mining area, and residents of the property may be subject to inconvenience or discomfort arising from use of agricultural chemicals, and from pursuit of agricultural operations, including, but not limited to, cultivation, irrigation, plowing, spraying, aerial application, pruning, harvesting, crop protection, agricultural burning, which occasionally generates dust, smoke, noise and odor, and protecting animal husbandry from depredation. Residents may also be subject to inconvenience or discomfort arising from the pursuit of mining operations, which occasionally generate dust, smoke, noise, odor and vibrations. Yuba County has established zoning for agricultural land that sets as a priority the agricultural use of the lands included therein, and has established as a priority the mining use of lands so designated, and residents of such property in or near these areas should be prepared to accept such inconvenience or discomfort as normal and necessary to such operations."
(b)
Disclosure in documents. The disclosure statement set forth in Subsection (a), consumer disclosure by seller, above shall be included in a document that a purchaser, lessee or transferee signs at the time of the sale, purchase, contract of sale, transfer or lease of real property within the County in conjunction with the disclosures required by California Civil Code Div. 2, Pt. 4, Title 4, ch. 2, Art. 1.5 (Civil Code § 1102 et seq.).
(c)
Disclosure in building permits. Where a building designed for residential occupancy is to be constructed in the County, the owners of the property shall, prior to issuance of a building permit, be required to sign a statement of acknowledgement on forms approved by the Community Development and Services Agency's Building Department containing the following statement:
"The property described herein on which the proposed structure is to be built is located within the County of Yuba, which is an agricultural and mining area, and residents of this property may be subject to inconvenience or discomfort arising from the use of agricultural chemicals, and from the pursuit of agricultural operations including, but not limited to cultivation, irrigation, plowing, spraying, aerial applications, pruning, harvesting, agricultural burning, which occasionally generate dust, smoke, noise and odor, and protecting animal husbandry from depredation. Residents may also be subject to inconvenience or discomfort arising from the pursuit of mining operations, which occasionally generate dust, smoke, noise, odor and vibrations. Yuba County has established zoning for agricultural land which sets as a priority the agricultural use of the lands included therein and has established as a priority the mining use of lands so designated, and residents of such property in or near these areas should be prepared to accept such inconvenience or discomfort as normal and necessary to such operations."
In lieu of signing the statement required above, the owner may submit evidence that the statement set forth in Subsection (a), consumer disclosure to seller, above has been made part of a document accompanying the sale, purchase, transfer, or lease of the property on which it is to be constructed.
(d)
Nondisclosure. Non-compliance with any part of this Chapter shall not affect title to real property, nor shall it prevent the recording of any document. However failure to make the disclosures required by Subsections (a), consumer disclosure to seller, and (c), disclosure in building permits, above shall subject the agent for the seller or lessor or the seller or lessor if there is no agent to a civil action by the purchaser or lessee for any damages incurred thereby.
The County may install or permit the installation of signs at the entry or within established farming or mining areas to notify and explain to purchaser that some of the land in such area is being used for agricultural or mining purposes and that the purchasers' interests are protected by law. The prospective purchaser of such land or a residence is advised to check with local County agencies as to any regulations or requirements that may affect agricultural or mining property and of inherent problems associated with a purchase of such property and of the likely effects of such agricultural or mining operations.
The purpose of this Chapter is to allow residential density flexibility through reduced lot area cluster and development in the rural foothill and mountainous areas of the County in order to facilitate the retention of natural resources, open space, agricultural lands, and wildlife habitat; avoid hazardous areas; and further implement the goals and policies of the General Plan.
The use of these clustered development provisions is allowed in the RC, RR, and RE districts located within a rural community boundary.
(a)
Pre-application review. Pre-application review pursuant to Section 11.53.160 is required prior to submitting a formal application for a clustered development project.
(b)
Conditional use permit required. Conditional Use Permit approval in compliance with Chapter 11.57, Use Permits., is required concurrent with approval of a tentative map.
Clustered development projects shall adhere to the development standards for the base zoning district, except as modified below:
(1)
Density. The total number of dwelling units (single, second, and/or multi) in a clustered development shall not exceed the maximum number permitted by the base zone density for the total area of the project.
a.
Deed Restriction Required. Deed restrictions shall be filed on each property to ensure the overall maximum density is not exceeded through future subdivision or development.
(2)
Lot size. The minimum lot size in a clustered development project shall be one acre. However, access, sewage disposal, water supply, surrounding parcel sizes, topography, adjacent land uses, applicable General Plan policies, and other factors will affect the County's decision on a project-by-project basis.
(3)
Sewage disposal/potable water. Each application for a clustered development project shall obtain tentative clearance from the Environmental Health Director for the proposed parcel sizes.
a.
Parcels one acre or smaller in size shall provide both a public sewer service and public water supply. Parcels between one acre and two and one-half acres in size shall provide either a public sewer service or public water supply as determined by the Environmental Health Director.
(4)
Open space. A minimum of 60 percent of the total project site shall be dedicated as permanent open space of which no more than ten percent may be used for infrastructure necessary to serve the development (wells, sewage disposal, drainage, detention basins and similar facilities).
a.
Guarantee. Open space shall be guaranteed in perpetuity using one or more of the following control mechanisms:
1.
Dedication of a conservation (or open space) easement to the County, other public agency or a public interest land trust;
2.
Dedication of land in fee-title to the County or other public agency; or
3.
Deed restrictions recorded with the County Recorder.
b.
Management plan. Public and private open space shall be maintained in accordance with an open space management plan acceptable to and approved by the County. Such plans shall, at a minimum, address the following:
1.
A description of site conditions such as vegetation and habitat type, natural and man-made features, and other characteristics of the site;
2.
Grass and brush clearing for fire fuel management, as required by site conditions;
3.
Erosion control;
4.
Sewage disposal, water well, and stormwater drainage facilities, including ditches and detention basins, if proposed for the development;
5.
Fencing if required for the protection of resources;
6.
Recreational activities compatible with open space; and
7.
Other natural resource management activities and uses. Open space management plans shall include provisions for long-term maintenance of improvements and facilities that will not result in a fiscal impact on the County.
c.
Uses. Uses and activities within dedicated open space shall be compatible with open space land. Unless limited or restricted by a conservation easement, development agreement, conditions on the approved tentative map, or other restricting mechanism, the following uses shall be permitted:
1.
Agriculture, including grazing and timber management, when allowed by the underlying base zoning;
2.
Resource conservation;
3.
Wildlife management;
4.
Recreational activities compatible with the objectives of the open space management plan;
5.
Community wells, community septic systems, community sewage disposal systems, and individual wells may be allowed as private open space and shall not exceed ten percent of the minimum 60 percent open space requirement identified in Section 11.21.040(4);
6.
Pedestrian, bicycle and equestrian trails. Public access is not required, but may be permitted subject to a public access easement being recorded; and
7.
Other similar uses, as determined through the application review process.
(5)
Flood zones. Clustered development projects shall be prohibited within flood zones unless they meet the requirements of Chapter 11.14, Floodplain Overlay District.
The purpose of this Chapter is to establish minimum wildfire protection standards pursuant to Public Resources Code § 4290 that shall apply to the issuance of a building or construction permit, tentative map approval, or other development entitlement approved by the County in designated State Responsibility Areas (SRA).
The provisions of this Chapter shall apply to the approval of new parcels, building permits for new construction or significant improvement to existing structures (within a three year period: 50 percent expansion of floor area or improvements valued at $25,000.00), road construction and road extension projects contained in Yuba County and located in a Cal Fire State Responsibility Area (SRA). All specified or referenced distances shall be measured along the ground unless otherwise stated. Basic emergency access and perimeter wildlife protection measures specified in the sections to follow provide standards for emergency access, signing and building numbering, private water supply reserves for emergency fire use, and vegetation and modification.
Except as otherwise noted in Section 9.70.220, Address Number; Display, of the County Code, the provisions of this Chapter with exception of significant improvements described above, shall not apply to existing permitted structures, existing County maintained roads, existing private roads and driveways, lot line adjustments, roads constructed exclusively for agricultural or extractive industrial uses where the property is owned by a single person or entity, and roads constructed exclusively for the management or harvesting of timber products.
To facilitate locating a fire and to avoid delays in response, all newly constructed or approved roads, streets, and buildings shall be designated with names or numbers posted on signs clearly visible and legible from the roadway. This Section shall not restrict the size of letters or numbers appearing on street signs for other purposes.
(1)
Size of letters, numbers, and symbols for street and address signs shall be a minimum four-inch letter height, ½-inch stroke, reflective, contrasting with the background color of the sign.
(2)
Street and road signs shall be visible and legible from both directions of vehicle travel for a distance of at least 100 feet.
(3)
All buildings shall have a permanently posted address, which shall be placed at each driveway entrance and visible from both directions of travel along the road. In all cases, the address shall be posted at the beginning of construction and shall be maintained thereafter, and the address shall be visible and legible from the road on which the address is located.
(4)
Address signs along one-way roads shall be visible from both the intended direction of travel and the opposite direction.
(5)
Where multiple addresses are required at a single driveway, they shall be mounted on a single post.
All roads and private driveways, unless exempt under Section 11.22.020, Applicability, of this Chapter, shall be constructed to provide for safe access for emergency wildland fire equipment and civilian evacuation concurrently.
(1)
All newly constructed approved roads, driveways and buildings shall be addressed by name(s) and number(s) displayed with signs that are clearly visible and legible from the roadway in accordance with Chapter 9.70, Uniform System for the Naming of Streets and Numbering of Properties, of the County Code and with the State of California Traffic Manual. All signs shall be installed prior to map recordation where a tentative map application has been approved and prior to the issuance of the Final Certification of Occupancy where an application for building permits has been proposed.
(2)
All new roads shall be constructed in accordance with Section 11.46.030, Road Improvements. All roads and driveways shall be designed to provide the minimum vertical clearance and to carry the maximum legal gross vehicle limit allowed by the Vehicle Code.
(3)
All driveways shall provide a minimum 12-foot-wide traffic lane and unobstructed vertical and horizontal clearance to combustible vegetation of 15 feet along its entire length.
a.
Driveways exceeding 150 feet in length, but less than 800 feet in length, shall provide a turnout near the midpoint of the driveway. Where the driveway exceeds 800 feet, turnouts shall be provided no more than 400 feet apart.
b.
A turnaround shall be provided at all building sites on driveways over 300 feet in length, and shall be within 50 feet of the building.
c.
Max driveway slope not to exceed 16 percent for gravel base driveways and 20 percent for paved driveways. Driveways exceeding 20 percent slope require fire district approval.
(4)
When a gate is proposed on a private road or driveway to restrict access to property, said gate shall be constructed as follows:
a.
Gate entrances shall be at least two feet wider than the width of the traffic lane(s) serving the gate, minimum 14 feet wide.
b.
All gates providing access from a road to a driveway shall be located at least 30 feet from the roadway and shall open to allow a vehicle to stop without obstructing traffic on the road.
c.
A key box is required where access to or within a structure or an area is restricted because of secured openings such as a locked gated entrance.
(5)
All new roadway structures shall meet the following standards:
a.
Bridges shall be constructed to carry at least the maximum load and provide the minimum vertical clearance as required by Vehicle Code §§ 35550, 35750 and 35250.
b.
Appropriate signing, including, but not limited to weight or vertical clearance limitations, and one-way road or single-lane conditions shall be posted to reflect the capacity of each bridge.
c.
A bridge with only one traffic lane may be authorized by the County; however, such bridge shall provide for unobstructed visibility from one end of the bridge to the other and turnouts at both ends of such bridge.
An emergency water system for wildfire protection shall be constructed in State Responsibility Areas and written clearance from Calfire on acceptance of the system design shall be submitted to CDSA prior to the recordation of a parcel map or final map. Prior to recordation, then applicant shall also demonstrate to the satisfaction of the Public Works Department how the water system will be maintained in perpetuity.
Fire hydrants shall be installed to meet the following standards:
(1)
Eighteen inches above grade.
(2)
Minimum eight feet from flammable vegetation.
(3)
Minimum four feet and a maximum 12 feet from roadway.
(4)
Minimum 50 feet and a maximum one-half mile from the building it serves.
(5)
Two and one half inch N.H. male fitting for pressure and gravity systems and four and one-half inch for draft systems
(6)
Identified with a three-inch reflectorized blue dot on the driveway, address sign, or placed within three feet of a hydrant with a sign three to five feet above the ground.
(7)
Located at a turnout or turnaround, along the driveway to the building it serves or along the road that intersects with that driveway.
The following defensible space standards shall be completed in SRA's prior to parcel or final map recordation, or the issuance of a Certificate of Building Occupancy.
(1)
Setback for defensible space. Firebreaks shall be established and maintained in accordance with Chapters 10.15, Firebreaks, of the County Code and Section 11.54.100, Mitigation Monitoring and Reporting Program and the following:
a.
All new buildings shall be constructed with a minimum 30-foot setback from all property lines and/or the road right-of-way to serve as a fire break. Required utility structures such as but not limited to water tanks, propane tanks, and well/pump houses are not considered buildings for the purposes of this Section.
b.
The side and rear yard building setback requirement may be reduced to the setback permitted by the zoning district upon written clearance from the fire district.
(2)
Disposal of flammable vegetation and fuels. Disposal, including chipping, burying, burning or removal to a landfill site approved by the local jurisdiction, of flammable vegetation and fuels caused by site development and construction, road and driveway construction, and fuel modification shall be completed prior to completion of road construction or final inspection of a building permit.
(3)
Greenbelts. When proposed as part of a development plan, greenbelts shall be located strategically as a separation between wildland fuels and structures.
Upon request by the applicant, a waiver of one or more of the requirements of this Chapter may be allowed by the Development Review Committee, where such waiver provides the same overall practical effect provided by this Chapter. A letter requesting such waiver shall be submitted to the Development Review Committee along with any fee established for waivers. A copy of the waiver request shall be submitted to the CDSA Director and to Cal Fire for review and comment. Cal Fire shall sign off prior to Development Review Committee approval. The review and comment period shall be no less than 14 days. Approval or conditional approval of the waiver request shall only be granted when the Development Review Committee makes the finding that such action is in keeping with the purposes and intent of this Chapter. Such findings shall include a statement of reasons for the decision. A written copy of these findings shall be provided to the Cal Fire Ranger Unit headquarters that administers SRA fire protection in Yuba County.
The decision of the Development Review Committee shall be final unless an appeal is filed in accordance with Section 11.53.150, Appeals and Calls for Review.
The purposes of this Chapter are to:
(1)
Regulate grading, drainage, and other earthwork activities within the unincorporated areas of Yuba County to preserve and safeguard public welfare, life, health, and property;
(2)
Ensure that the intended use of a graded site is consistent with the Yuba County General Plan (including adopted Community or Specific Plans), the County's Storm Water Management Plan, Yuba County Public Works Standard Specifications, California Fire Safe Standards, stormwater regulations for construction activities, and local ordinances, including this Code, building and construction (Title 10), and applicable building codes;
(3)
Require implementation of erosion and sedimentation control measures to protect water quality and reduce the discharge of pollutants into county storm water drainage systems to the maximum extent practicable using best management practices; and
(4)
Establish authority and procedures for the issuance of grading permits; for the approval of grading plans; for inspection of earthwork activities; and, for enforcement of the provision herein.
(a)
Grading permit; required.
(1)
Any grading performed in the County of Yuba—Phase II Municipal Separate Sewer System (MS4) permit boundaries that creates or replaces 2,500 square feet or more of impervious surface shall require either a grading permit or a building permit. For these activities, the requirements within Code Section 7.50 shall apply.
(2)
For all projects excluding those covered in Subsection 11.23.020(a)(1) above, and except for the specific exemptions listed in Subsection 11.23.020(b), Grading Permit; Exemptions, no person shall do or permit to be done any grading on any site in the unincorporated areas of Yuba County without a valid grading permit obtained from the Community Development and Services Agency. A permit shall also be required for the following:
a.
Retaining walls which are over four feet in height, as measured from bottom of footing to top of the wall;
b.
Any retaining walls that are subject to surcharge;
c.
Private vehicular bridges;
d.
Fill operations exceeding four feet when filling an abandoned swimming pool unless a demolition permit for same is obtained from the Building Department.
(3)
A grading permit is required for any grading and/or other construction activity with ground disturbance of more than one acre, or any grading and/or construction activity smaller than one acre but part of a greater plan involving over one acre.
(b)
Grading permit; exemptions. Unless in conflict with provisions of adopted general and/or specific plans, and excluding projects covered in Subsection 11.23.020(a)(1), the following grading may be done without obtaining a permit. Exemption from the requirement of a permit shall not be deemed permission to violate any provision of this Chapter or the need to obtain any other permits or other authorizations that may be otherwise required with that activity:
(1)
Minor projects which have cuts or fills, each of which is less than two feet in vertical depth at its deepest point measured from the existing ground surface and meets all of the following criteria:
a.
Less than 50 cubic yards of graded material in a single area and does not obstruct a drainage course, within a two-year period. In calculating the graded material quantity, excavation material used as fill material will not be counted twice. (For example: 25 cubic yards [C.Y.] of excavation material that is also placed as fill material would be calculated as 25 cubic yards, not as 25 C.Y. + 25 C.Y. = 50 C.Y.);
b.
The removal, plowing under or burial of less than 10,000 square feet of vegetation on slopes ten percent or greater or any amount of vegetation on slopes less than ten percent on areas of land totaling less than one acre within a two-year period;
c.
Does not create unstable or erodible slopes;
d.
Does not encroach onto sewage disposal systems including leach field areas, or into setbacks of existing sewage disposal systems, repair areas, or proposed septic areas as outlined in Section 7.07.450, Location of Septic Tanks, Building Sewer Pipes, Leach Fields and Seepage Pits, of the County Code;
e.
Does not impact the seal integrity of any water well. If a well is encountered during the grading and is not intended for use, it shall be destroyed with permit according to Section 7.03.090, Abandonment [of water wells], of the County Code;
f.
Does not encroach into the areas designated as zone A as shown on the Flood Insurance Rate Maps;
g.
Does not encroach into the areas designated as Inundation Easements;
h.
Does not obstruct any watercourse or disturb or negatively impact any drainage way, wetland, stream environment zone, or water body;
i.
Does not divert or obstruct overland flow, or negatively affect other adjacent properties;
j.
Includes provisions to effectively prevent discharges of pollutants from the site; and
k.
Provides for completion of soil disturbing activities within a continuous period of 45 days, and revegetation of all disturbed areas immediately thereafter.
(2)
Grading done by or under the supervision or construction control of a State or Federal agency that assumes full responsibility for the work;
(3)
Excavations or fill operations in connection with a swimming pool authorized by a valid building permit or demolition permit issued by the Building Department;
(4)
Retaining walls less than four feet in height, as measured from bottom of footing to the top of the wall, and not subject to surcharge;
(5)
Grading necessary for agricultural operations, unless such grading converts one acre or more of land that contains riparian vegetation, oak woodlands or forests; involves grading and earthmoving activities on slopes over 12 percent; and/or, will create a cut or fill whose failure could endanger any structure intended for human or animal occupancy or any public road, or could obstruct any watercourse or drainage conduit, or provided no excavated material is imported to or exported from the premises;
(6)
Trenching and grading incidental to the construction or installation of County approved underground pipe lines, septic tank disposal fields, conduits, electrical or communication facilities, and drilling or excavation for post holes or approved wells;
(7)
Excavations less than 250 cubic yards for soil or geological investigations by a geotechnical engineer, civil engineer, or engineering geologist;
(8)
Grading in accordance with plans incorporated in an approved surface mining permit, reclamation plan, or sanitary landfill or environmental remediation project or petroleum product tank removal and installation where governed by other State or County ordinance, and provided no excavated material is imported to or exported from the premises;
(9)
Maintenance of existing firebreaks and roads to keep the firebreak or road substantially in its original condition;
(10)
Routine cemetery excavations and fills;
(11)
Performance of emergency work necessary to protect life or property when an urgent necessity arises. The person performing such emergency work shall notify the Community Development and Services Agency promptly of the problem and work required and shall apply for a permit within ten calendar days after commencing such work;
(12)
An excavation below finished grade for basements and footings of a building, retaining wall or other structure authorized by a valid building permit. This shall not exempt any fill made with the material from such excavation or exempt any excavation having an unsupported height greater than five feet after the completion of such structure;
(13)
Timber harvest operation conducted under valid State or Federal permit, stream alteration permits, dams under State jurisdiction, etc.
(a)
Grading standards.
(1)
No person shall do or permit to be done any grading in such a manner that quantities of dirt, soil, rock, debris or other material substantially in excess of natural levels are washed, eroded or otherwise moved from the site, except as specifically provided for by a permit. In no event shall grading activities cause or contribute to the violation of provisions of any applicable NPDES stormwater discharge permit.
(2)
All grading within unincorporated Yuba County, regardless of whether or not a grading permit is required, shall be in compliance with all of the following:
a.
Applicable requirements of this Chapter and other County ordinances, rules, regulations, and design standards.
b.
Minimum acceptable industry standards for minimizing erosion and controlling sediment discharges by providing erosion and sediment controls, soil stabilization, source controls, and pollution prevention measures.
c.
Requirements of the Central Valley Regional Water Quality Control Board including the Statewide "General Permit for Discharges of Storm Water Associated with Construction Activities and the Phase II Small MS4 General Permit (Order No. 2013-0001-DWQ)."
d.
As determined by the Public Works Director, additional requirements beyond those specified or referenced in this Chapter if such requirements are deemed necessary to protect the health, safety, or welfare of the public; to prevent or eliminate a hazard to public or private property; or, to otherwise fulfill the purposes of this Chapter.
(b)
Water obstruction. No person shall do or permit to be done any grading which may obstruct, impede or interfere with the natural flow of storm waters, in such manner as to cause flooding where it would not otherwise occur, aggravate any existing flooding condition or cause accelerated erosion. This Section applies whether such waters are unconfined upon the surface of the land or confined within land depressions or natural drainage ways, are unimproved channels or watercourses or improved ditches, channels or conduits.
(c)
Levee work. No person shall excavate or remove any material from or otherwise alter any levee required for river, creek, bay, or local drainage control channel, including excavation along the projected fill slope line, without prior approval of the local governmental agency responsible for the maintenance of the levee.
(d)
Levee landside setbacks; development or grading adjacent to levees.
(1)
Setbacks from levees shall be as determined by the levee maintenance district, but in no case shall be less than 50-feet from the toe of levees for new structures, fences, pools, roads, utilities, and storage or stockpiling of agricultural waste to preserve the long-term ability to conduct inspections, perform maintenance, fight floods, and allow room for future minor changes to levee configurations. In addition, any grading activity within 400 feet of the landside levee toe shall require a registered geotechnical engineer to submit a stamped report demonstrating that the proposed action will not have an adverse impact on the integrity of the levee system. For the purposes of this Section, grading activities are defined as any trench or hole greater than 24 inches in depth or general site grading that reduces the surface by more than 12 inches in depth.
(2)
Site-specific exceptions to the setback standard can be pursued by an application to the Board of Supervisors on a case-by-case basis. These exceptions should only be allowed in instances where levee stability upgrades greatly exceed minimum standards, such that risk and uncertainty are substantially removed at that location.
(3)
Agricultural practices will generally be exempt from setback requirements except aquaculture projects, ponds, or similar that may affect integrity of levees or the storage of agricultural waste as specified previously in this Section. This exemption shall continue until agricultural activity ceases and development activity begins within the area protected by the levee.
(e)
Construction in public rights-of-way. No person shall perform any grading work within the right-of-way of a public road or street, or within a public easement, without prior written approval of the Public Works Director or authorized Agent.
(f)
Hazards. If the Enforcement Official determines that any grading on private or public property constitutes a hazard to public safety; endangers property; adversely affects the safety, use or stability of adjacent property, an overhead or underground utility, or a public way, watercourse or drainage channel; or could adversely affect the water quality of any water bodies or watercourses, the Public Works Director or authorized Agent may issue a stop work notice to the owner of the property upon which the condition is located, or other person or agent in control of such property. Upon receipt of such stop work notice, the recipient shall, within the period specified therein, stop all work, obtain a grading permit and conform to the conditions of such permit. The Community Development and Services Agency may require the submission of plans or soil or geological reports, detailed construction recommendations, drainage study or other engineering data prior to and in connection with any corrective or proposed work or activity.
(g)
Liability. Neither issuance of a permit under the provisions of this Chapter nor compliance with the provisions hereof or with any conditions imposed in a permit issued hereunder shall relieve any person from responsibility for damage to any person or property or impose any liability upon the County for damage to any person or property.
(a)
Grading permit; filing of application. Applications for permits shall be filed with the Community Development and Services Agency on forms furnished by that department. Each application shall include a plan-checking fee and other fees as required, grading plans and a statement of the intended use of the site. The Community Development and Services Agency shall determine whether the application is complete or whether additional information is required from the applicant. The applicant shall be notified within 20 working days, and provided outstanding requirements in writing if the application is deemed incomplete.
(b)
Grading permit; fees. The schedule of fees and costs shall be those established in Section 13.20.600 of the County Code. Before a permit is issued, the applicant shall deposit with the Community Development and Services Agency cash or a check, in a sufficient sum to cover the fee for issuance of the permit, charges for review of plans, specifications and reports, other engineering services, field investigations, necessary inspection or other work and routine laboratory tests of materials and compaction, all in accordance with schedules established and adopted by the Board.
(1)
Public utilities may, at the option of the Community Development and Services Agency, make payment for grading permit fees as billed instead of by advance deposit.
(2)
Any person, firm or corporation doing grading work in violation of this Chapter or when such work is not done in accordance with an approved permit, a fee covering investigation of any violation and inspection and plan checking of work required to correct such violation shall be charged to the violator to cover all actual costs and any permitting fees shall be double the regular fee.
(c)
Zoning clearance and compliance with CEQA. The California Environmental Quality Act (Public Resources Code § 21000 et seq.) (CEQA) and the Community Development and Services Agency may require the preparation of environmental documents concerning a proposed grading project. Any required review from the Environmental Health Department, or zoning clearance from the Planning Department must be completed before the grading permit application will be deemed complete.
(d)
Grading permit; notice to adjacent utility owners. Applicant shall contact Underground Service Alert (USA) prior to digging.
(e)
Grading permit; referral to other public agencies. The Community Development and Services Agency may refer an application to other interested public agencies for their recommendations. All grading plans on properties within Reclamation District 784 require review and approval of that District before a permit will be issued.
(f)
Grading permit; conditions. No permit shall be granted unless the project conforms to the Yuba County General Plan, any community or specific plans adopted thereto and applicable Yuba County ordinances including the zoning ordinance.
(1)
Where a proposed grading project requires the filing of a tentative map or the intended use requires approval, no grading permit shall be granted prior to approval by the applicable planning authority.
(2)
If the County has reasonable cause to believe that Federal and/or State permits may be necessary for the project, no County permit shall be granted until permits are obtained from those other agencies and copies of which shall be provided to the County. If no permits are required from other agencies, written notification from those agencies shall be submitted to the Community Development and Services Agency prior to County granting the permit.
(3)
The permit shall be limited to work shown on the grading plans as approved by the Community Development and Services Agency. In granting a permit, the Community Development and Services Agency may impose any condition deemed necessary to protect the health, safety and welfare of the public, to prevent the creation of a hazard to public or private property, prevent erosion and to ensure proper completion of the grading, including but not limited to:
a.
Mitigation of adverse environmental impacts as disclosed by any environmental document findings. This includes the proper disposal of any hazardous material identified in the initial planning phase. The Director of Environmental Health or the Director of the Office of Emergency Services will approve hazardous materials management;
b.
Improvement of any existing grading to comply with the standards of this Chapter;
c.
Requirements for fencing or other protections of grading which would otherwise be hazardous;
d.
Requirements for dust, erosion, sediment and noise control, and hours of operation and season of work, weather conditions, sequence of work, access roads and haul routes;
e.
Requirements for safeguarding watercourses, whether natural or man-made, from excessive deposition of sediment or debris in quantities exceeding natural levels;
f.
Requirements for safeguarding areas reserved for on-site sewage disposal;
g.
Assurance that the land area in which grading is proposed and for which habitable structures are proposed is not subject to hazards of land slippage or significant settlement or erosion and that the hazards of flooding can be eliminated or adequately reduced;
h.
Requirements for safeguarding existing water wells; and,
i.
Requirements for projects that fall within the MS4 boundary and that create or replace 2,500 square feet or more of impervious surface as specified in Chapter 7.50, Stormwater Quality.
(4)
Right of entry. As a condition of the permit, the property owner shall grant the County a right of entry for the duration of the permit until after final inspection. Whenever necessary to enforce the provisions of this Chapter, the Public Works Director or designee may enter the premises to perform any duty imposed by this Chapter.
(g)
Permission of other agencies or owners. No permit shall relieve the permittee of responsibility for securing other permits or approvals required for work which is regulated by any other department or agency of the County, state or federal government or other public agency, or for obtaining any easements or authorization for grading on property not owned by the permittee. Proof of issuance of applicable public agency permits may be required before the issuance of a grading permit.
(h)
Location of property lines. Whenever the location of a property line or easement or the title thereto is disputed during the application process or during a grading operation, a survey by a licensed land surveyor or civil engineer licensed to practice land surveying or resolution of title, all at the expense of the applicant, may be required by the Community Development and Services Agency.
(i)
Time limits.
(1)
The permittee shall perform and complete all the work required by the permit within time limits specified in the permit. If the work cannot be completed within the specified time, a request for an extension of time setting forth the reasons for the requested extension shall be presented in writing to the Community Development and Services Agency no later than 30 days prior to the expiration of the permit. The Community Development and Services Agency may grant additional time for the permitted work to be completed.
(2)
If all of the permit work required is not completed within the time limit specified in Subsection (I)(1) of this Section, no further grading shall be done without renewing the permit. A written request for renewal shall be submitted to the Public Works Director who may require a new application and fees depending upon the time between the expiration date and the renewal request, revisions in County regulations, and/or changed circumstances in the immediate area. Any revised plan shall be submitted to the Community Development and Services Agency for review, and any costs thereof shall be at the applicant's expense.
(j)
Grading permit; effect. The issuance of a permit or approval of plans and specifications shall not be construed as an approval of any violation of the provisions of this Chapter or of any other applicable laws, ordinances, rules or regulations.
(k)
Appeals. Appeals of decisions may be made pursuant to the procedures of Section 11.53.150, Appeals and Calls for Review.
(l)
Transfer. No permit issued under this Chapter may be transferred or assigned in any manner whatsoever, without the express written consent of the Community Development and Services Agency.
(m)
Grading prior to approval of improvement plans. Property owners who have an approved tentative map and wish to grade prior to the approval of the improvement plans shall submit an application for a grading permit and shall comply with the following requirements:
(1)
A separate grading plan shall be submitted for review and approval by the Community Development and Services Agency. This plan shall conform to the requirements of this grading ordinance and any applicable conditions placed on the project as a result of any formal discretionary permit process. The applicant shall acknowledge that any additional grading or revisions to work necessitated by conflicts discovered during the improvement plan check or subsequent construction will be corrected solely at the applicant's expense.
(2)
When deemed necessary by the Community Development and Services Agency, the property owner shall submit a revegetation and winterization plan for review and approval. This plan shall include a performance agreement with Yuba County which includes a specific schedule for performance of the subject grading, an engineer's estimate of cost for implementing the plan, and cash or other approved form of security to ensure the timely performance of the plan.
(3)
Plan check fees shall be required in full at time of plan submittal. Inspection fees shall be required in full prior to issuance of grading permit.
(4)
A drainage report shall be required as per the requirements of this grading ordinance and the Yuba County development standards.
(n)
Work completion.
(1)
The permittee shall notify the Community Development and Services Agency upon work completion and request a final inspection. All permitted grading activities shall be subject to final inspection by the Community Development and Services Agency.
(2)
Upon determination by the Public Works Director that all work has been completed in substantial conformance to the grading plan and associated requirements, a "Completion Notice" shall be issued by the Community Development and Services Agency.
(3)
Issuance of a "completion notice" does not relieve the permittee of responsibility for compliance with all grading permit requirements. Issuance of a "completion notice" should not be construed as modifying any permit requirements or relieving the permittee of responsibilities for satisfactory work completion.
(4)
No certificate of occupancy shall be issued for a permitted structure until the Public Works Director has issued a "completion notice" pursuant to this Section. The owner may be required to post an approved security with Public Works in sufficient amount, as determined by the Public Works Director, to ensure satisfactory completion of any ancillary work within a specified period of time.
(o)
Denial of other permits. No building permit, septic, electrical permit, or any other permit shall be issued by the County to any person for any premises or portion thereof which is in violation of this Chapter.
(a)
Grading plans.
(1)
Each application for a grading permit shall include the following:
a.
A completed application form;
b.
Two complete sets of grading plans. More may be required upon request;
c.
Profiles, cross sections, and specifications as required;
d.
A complete drainage report as required by the Community Development and Services Agency;
e.
The application fee as determined by the Board of Supervisors;
f.
Where applicable, evidence of coverage, or application for coverage, under an NPDES general construction permit;
g.
Storm Water Pollution Prevention Plan (SWPPP) with a State issued W.D.I.D. number, if applicable.
(2)
The plans and other documents will be reviewed by the Community Development and Services Agency. The applicant and/or project engineer will be notified of any necessary changes to the plans. When the plans and other documents have been approved by the Community Development and Services Agency, a grading permit will be issued for the project. All work must be done in strict conformance with the approved plans and documents. The approved plans shall not be changed or altered except in accordance with the provisions of this Chapter.
(b)
Engineer required. All plans and specifications shall be prepared and signed by a registered civil engineer, however the Community Development and Services Agency may waive this requirement if the proposed grading does not:
(1)
Endanger the public health, safety and welfare;
(2)
Require cuts and fills involving a combined total of 5,000 cubic yards of dirt or more;
(3)
Require cut or fill depths exceeding ten feet;
(4)
Include an access road serving five or more existing or potential residences;
(5)
Require a cut or fill that is situated so as to cause unduly increased soil pressure or reduce earth support upon adjacent structure or property;
(6)
Include the construction of any drainage or sediment control structures, culverts, or facilities or substantial alteration of any existing drainage course;
(7)
Include the creation or aggravation of an unstable slope condition;
(8)
Require construction of any retaining wall over four feet in height;
(9)
Include the construction of a vehicular bridge.
(c)
Engineered grading plans. Grading plans and specifications shall be prepared and signed by a registered civil engineer, as provided herein.
(1)
The plans shall include the following:
a.
All plans shall be on 24-inch by 36-inch sheets unless otherwise approved, and shall be drawn at a scale no less than one inch equals 100 feet;
b.
A title block. Plans shall be entitled "grading plan" and state the purpose of the proposed grading and the name of the engineer or firm by whom this plan is prepared, owner's name and address, and site address;
c.
A vicinity sketch (not at map scale) indicating the location of the site relative to the principal roads, lakes and watercourses in the area;
d.
North arrow and scale;
e.
A site plan indicating the extent of the work and any proposed divisions of land;
f.
The complete site boundaries and locations of any easements and rights-of-way traversing or adjacent to the property;
g.
The location of all existing or proposed roads, buildings, wells, pipelines, watercourses, septic systems or areas reserved for on-site sewage disposal, and any other structures, facilities, and features of the site, as well as the location of all improvements on lots within 50 feet of the proposed work;
h.
Location and nature of known or suspected soil or geologic hazard areas, including but not limited to serpentine rock areas, landslides, etc.;
i.
Accurate contour lines of the existing terrain and proposed finished grade at intervals not greater than five feet, or spot elevations 25 feet on center showing all topographic features and drainage patterns throughout the area where the proposed grading is to occur relative to a bench mark established on site. The contour lines/spot elevations shall be extended to a minimum of 50 feet beyond the affected area, and further, if needed, to define intercepted drainage, and shall be extended a minimum of 100 feet outside of any future road right-of-way. Contour lines or spot elevations shall be shown for all neighboring properties to verify surrounding drainage patterns;
j.
Approximate location of cut and fill line extents and finished slopes of all proposed grading and the limits of all proposed grading work, including borrow and stockpile areas;
k.
Location, width, direction of flow and approximate location of any watercourses including tops and toes of banks;
l.
Approximate boundaries of any areas with histories of flooding;
m.
Cross sections, profiles, elevations, dimensions, and construction details based on accurate field data;
n.
Construction details for roads, watercourses, culverts, bridges and drainage devices, retaining walls, cribbing, dams, and other improvements existing or to be constructed, together with supporting calculations and maps as may be required after initial review of plans;
o.
Proposed provisions for storm drainage control and any existing or proposed flood control facilities or septic tank disposal fields or areas reserved for on-site sewage disposal near the grading;
p.
A detailed erosion and sediment control plan including specific locations, construction details, and supporting calculations for temporary and permanent sediment control structures and facilities;
q.
A revegetation plan, including temporary erosion control plantings, permanent slope plantings, replacement of temporary groundcover, and irrigation facilities;
r.
All natural features including wetlands, vernal pools, swales, streams, oak woodlands and any other features protected by County, state or federal regulations;
s.
Any oak tree five inches or greater in diameter at breast height (DBH) proposed for removal;
t.
An estimate of the total quantities of excavation and fill, not net quantity;
(2)
Additional supporting information which may be required includes, but is not limited to:
a.
The location of any borrow site or location for disposal of surplus material;
b.
A projected schedule of operations, including, as a minimum, the dates of:
1.
Commencement of work,
2.
Start and finish of rough grading,
3.
Completion of drainage facilities,
4.
Completion of work in any watercourse,
5.
Completion of erosion and sediment control facilities,
6.
Completion of hydromulching and other landscaping. If rough grading is proposed between October 1 and April 30, a more detailed schedule of grading activities and use of erosion and sediment control facilities may be required;
c.
Itemized cost estimate of the proposed grading and related work;
d.
A complete drainage study in conformance with the Yuba County Standards and RD 784 Standards (when applicable);
e.
Geotechnical investigation report and recommendations addressing the proposed work.
(d)
Retention of approved plans. One set of approved plans and specifications shall be provided by the applicant, unless additional sets are requested, and retained by the Community Development and Services Agency.
(e)
Modification of approved plans.
(1)
Proposed modifications of an approved final plan shall be submitted to the Community Development and Services Agency in writing for approval, unless included in improvement plans submitted for approval.
(2)
All necessary soils and geological information and design details shall accompany any proposed modification.
(3)
The modification shall be compatible with any subdivision map or land use requirements.
(f)
Seasonal requirements. Implementation of erosion and sediment control plans shall be based on the season of the year and the stage of construction at forecasted periods of rainfall and heavy storms. Erosion and sediment control plans shall allow for possible changes in construction scheduling, unanticipated field conditions, and relatively minor changes in grading. Modifications to plans may be required after plan acceptance.
(a)
Geotechnical investigation required. A soil or geologic investigation report shall accompany the application in any of the following circumstances when required by the Public Works Director:
(1)
When the proposed grading includes a cut or fill exceeding ten feet in depth at any point; however, for vehicular ways, a soil investigation shall not be required unless the grading includes a proposed cut or fill that exceeds ten feet in depth and the slope of the natural ground exceeds 30 percent;
(2)
When highly expansive soils are present; and
(3)
In areas of known or suspected geological hazards, including landslide hazards and hazards of ground failure stemming from seismically induced ground shaking.
(b)
Required investigators; basis of investigations.
(1)
Those portions of the soil or geologic investigation that constitutes "civil engineering" as defined by Business and Professions Code § 6734 shall be conducted by or under the direct supervision of a registered geotechnical engineer or a registered civil engineer. Those portions of the investigation that involve the practice of "geology" as defined by Business and Professions Code § 7802 shall be conducted by an engineering geologist.
(2)
The investigations shall be based on observations and tests of the material exposed by exploratory borings or excavations and inspections made at appropriate locations. Additional studies may be necessary to evaluate soil and rock strength, the effect of moisture variation on soil, bearing capacity, compressibility, expansiveness, stability, keying, subdrainage benching and other factors. Grading factors such as moisture variability, ability to compact the material when wet, etc., should be evaluated.
(c)
Supplemental reports and data. Any soil or geologic investigation report shall be subject to the approval of the Community Development and Services Agency who may require supplemental reports and data. Recommendations included in the reports and approved by the Community Development and Services Agency shall be incorporated in the final plans and specifications.
(d)
Soil/geologic investigation report. The soil or geologic investigation report shall contain all of the following, as they may be applicable to the subject site:
(1)
An index map showing the regional setting of the site;
(2)
A site map which shows the topographic features of the site and locations of all soil borings and test excavations;
(3)
A classification of the soil types (unified soil classification), pertinent laboratory test data and consequent evaluation regarding the nature, distribution, and strength of existing soils;
(4)
A description of the geology of the site and geology of the adjacent areas when pertinent to the site;
(5)
A suitably scaled map and cross sections showing all identified areas of land slippage;
(6)
A description of any encountered groundwater or excessive moisture conditions;
(7)
A description of the soil and geological investigative techniques employed;
(8)
A log for each soil boring and test excavation showing elevation at ground level and the depth of each soil or rock strata;
(9)
An evaluation of the stability of pertinent natural slopes and recommendations regarding maximum cut and fill slopes of proposed work;
(10)
An evaluation of settlement associated with the placement of any fill;
(11)
Recommendations for grading procedures and specifications, including methods for excavation and subsequent placement of fill;
(12)
Recommendations regarding surface and subsurface drainage and erosion control;
(13)
Recommendations for mitigation of geologic hazards.
(e)
Final report. Upon completion of rough grading work, in the event a complete record of the work is desired or necessary, the Community Development and Services Agency may require a final geotechnical report that includes, but is not limited to the following:
(1)
A complete record of all field and laboratory tests including location and elevation of all field tests;
(2)
A professional opinion regarding slope stability, soil bearing capacity, and any other pertinent information;
(3)
Recommendations regarding foundation design, including soil bearing potential and building restrictions or setbacks from the top or toe of slopes;
(4)
A declaration by the geotechnical engineer, civil engineer or engineering geologist in the format required by the Community Development and Services Agency that all work was done in substantial conformance with the recommendations contained in the soil or geologic investigation reports as approved and in accordance with the approved plans and specifications.
(f)
Changed conditions. Where soil or geologic conditions encountered in the grading operation deviate from that anticipated in the soil and geologic investigation reports or where such conditions warrant changes to the recommendations contained in the original soil investigation, a revised soil or geologic report shall be submitted for the approval of the Community Development and Services Agency.
(g)
Special inspection.
(1)
As a condition of the permit, the Community Development and Services Agency may require the permittee to retain a private geotechnical engineer or civil engineer to directly supervise or perform continuous inspection work, and upon completion of the work to provide a written statement acknowledging that he or she has inspected the work and that in his or her professional judgment the work was performed in accordance with the approved plans and specifications. The permittee shall make his or her own contractual arrangements for such services and shall be responsible for payment of all costs. Continuous inspection by a geotechnical engineer or civil engineer shall include, but not be limited to, the following situations:
a.
During the preparation of a site for the placement of fills which exceed five feet in depth on slopes which exceed ten percent and during the placing of such fills; however, for vehicular pathways, fill placement shall be continuously inspected when fills exceed ten feet in height;
b.
During the preparation of a site for the placement of any fill which is intended to support any building or structure when the fill exceeds three feet in depth;
c.
During the installation of subsurface drainage facilities.
(2)
Reports filed by the private geotechnical engineer or civil engineer regarding special inspection shall confirm in writing that from his or her personal knowledge the work performed during the period covered by the report has been performed in substantial accordance with the approved plans and specifications.
(3)
The use of a private geotechnical engineer or civil engineer for inspections shall not preclude the Community Development and Services Agency from conducting inspections or from authorizing inspections by other qualified inspectors as may be necessary.
(h)
Noncompliance notification by private geotechnical engineer or civil engineer. The permittee shall cause the work to be done in accordance with the approved plans. If, during the course of construction, the private geotechnical engineer or civil engineer finds that the work is not being done substantially in accordance with the approved plans and specifications, he or she shall immediately notify the person in charge of the work and the Community Development and Services Agency of the non-conformity and the corrective measures to be taken. When changes in the plans are required, he or she shall prepare or cause to be prepared such proposed changes and submit them to the Community Development and Services Agency for approval.
(i)
Periodic progress reports by private geotechnical engineer or civil engineer. As a condition of the permit, periodic progress reports shall be rendered by the private geotechnical engineer or civil engineer as required by the Community Development and Services Agency including, but not limited to, laboratory tests, slope stability, placement of materials, retaining walls, drainage, utilities and any special permit or plan requirements.
(j)
Progress report by permittee. Periodic progress reports shall be rendered by permittee on specified calendar dates and at commencement and completion of major key grading and erosion and sediment control operations. The dates of operations upon which such reports are required and their content shall be as required in the permit by the Community Development and Services Agency.
(k)
Record drawings. Permittee shall submit to the Community Development and Services Agency a record drawing of the final grading following completion of the work, if requested.
(l)
Performance of work; inspection/certification.
(1)
The Community Development and Services Agency may inspect any work, or require certification by private engineer of any work, done under a grading permit. County inspections will continue and no permittee shall be deemed to have complied with this Chapter unless one of the following has occurred:
a.
After receiving a Notice of Termination signed by the State of California (if applicable), a final inspection has been performed by the Yuba County Public Works Department with the work done under the grading permit accepted as complete; or
b.
Certification of completion by the civil engineer, or the geotechnical engineer of record, has been submitted to and accepted by the Public Works Director; or
c.
The final inspection has been waived in writing by the Public Works Director.
(2)
The permittee shall provide adequate access to the site for inspection by the Community Development and Services Agency during the performance of all work and for a minimum period of one year after completion of the work.
(3)
If the engineer of record is changed during the grading, the work shall be stopped until the replacement engineer has agreed in writing to accept his responsibility within the area of technical competence for approval upon completion of the work. It shall be the duty of the permittee to notify the Public Works Director in writing of such change prior to the recommencement of such grading.
(4)
Owner, developer, and contractor are responsible for the maintenance of all erosion and sediment control measures using best management practices on the project site until accepted as complete by Public Works Department.
(m)
Other responsibilities of permittee. The permittee shall also be responsible for the following:
(1)
Protection of utilities. The permittee shall be responsible for the prevention of damage to any public utilities or services. Contractor shall notify USA North, and all other facility owners that are not members of USA North, two working days in advance of any digging. Also, see Section 2.8 of the County of Yuba Standard Specifications.
(2)
Protection of adjacent property. The property owner is responsible for the prevention of damage to adjacent properties. No person(s) shall excavate or fill on land sufficiently close to the property line to endanger any adjoining public street, sidewalk, alley or other public or private property, or easement, without supporting and protecting such property from damage which may result.
(3)
Advance notice. The permittee shall notify the Community Development and Services Agency at least 48 hours prior to the start of work.
(4)
Erosion and sediment control. It shall be the responsibility of the permittee to control discharge of sediment from the site to any watercourse, drainage system, or adjacent property and to protect watercourses and adjacent properties from damage by erosion, flooding or deposition of sediment which may result from the permitted grading.
(5)
Hazardous materials control. It shall be the responsibility of the permittee to prevent discharge of hazardous materials from the site to any watercourse, drainage system, or adjacent property, and to protect watercourses and adjacent properties from damage by hazardous materials, which may result from the permitted grading.
(a)
Excavations. Excavations shall be constructed or protected so that they do not endanger life, limb or property.
(b)
Excavation slope. The slope of cut surfaces of permanent excavations shall not be steeper than two feet horizontal to one foot vertical (2:1) exclusive of terraces and exclusive of rounding described herein. Steeper slopes will be permitted in competent bedrock provided such slope inclinations are in accordance with recommendations contained in the geotechnical or geological report. The bedding planes, foliation planes or principal joint sets in any formation when dipping towards the cut face shall not be day lighted by the cut slope unless the soils and geologic investigations contain recommendations for steeper cut slopes. Cut slopes shall be rounded into the existing terrain to produce a contoured transition from cut face to natural ground. Slopes no steeper than three feet horizontal to one foot vertical (3:1) may be required by the Community Development and Services Agency.
(c)
Placement of fill. Fills shall be constructed in layers. The loose thickness of each layer of fill material before compaction shall not exceed 12 inches. Completed fills shall be stable masses of well-integrated material bonded to adjacent materials and to the materials on which they rest. Fills shall be competent to support anticipated loads and be stable at the design slopes shown on the plans. Proper surface and subsurface drainage and other appropriate measures shall be taken to ensure the continuing integrity of fills. Earth materials shall be used which have no more than minor amounts of organic substances and have no rock or similar irreducible material with a maximum dimension greater than 12 inches. Larger material may be used with the approval of the Community Development and Services Agency and the geotechnical engineer.
(d)
Compaction of fill. All fills shall be compacted throughout their full extent to a minimum of 90 percent of maximum density as determined by the appropriate Caltrans standard method or other alternate methods approved by the Community Development and Services Agency. Tests to determine the density of compacted fills shall be made on the basis of not less than one test for each two-foot vertical lift of the fill but not less than one test for each 1,000 cubic yards of material placed. More frequent testing may be required by the Community Development and Services Agency. Additional density tests at a point approximately one foot below the fill slope surface shall be made on the basis of not less than one test for each 1,000 square feet in slope surface but not less than one test for each ten-foot vertical increase of slope height. All tests shall be reasonably uniformly distributed within the fill or fill slope surface. Results of such testing and location of tests shall be presented in the periodic and final reports. Compaction may be less than 90 percent of maximum density, as determined by the above test, within six inches of the slope surface when such surface material is placed and compacted by a method acceptable to the Community Development and Services Agency for the planting of the slopes. Compaction of temporary stockpile fills, to be used for a period of not greater than six months, shall not be required, except where the Community Development and Services Agency determines that compaction is necessary as a safety measure to aid in preventing saturation, sliding, or erosion of the fill. Higher compaction densities will be required for roads.
(e)
Ground preparation for placement of fill. The natural ground surface shall be prepared to receive fill by removing vegetation, noncomplying fill, top soil, and other unsuitable material, and where slopes are six feet horizontal to one foot vertical (6:1) or steeper, by benching into competent material in a manner acceptable to the Community Development and Services Agency. The keyway under the toe, if specified, shall be at least 15 feet wide unless otherwise approved by the Public Works Director.
(f)
Fill slopes. The slope of permanent fills shall not be steeper than two feet horizontal to one foot vertical (2:1), exclusive of terraces and exclusive of roundings described herein, unless a soils report supports a steeper slope as recommended by the geotechnical engineer. The Community Development and Services Agency may require that the fill be constructed with an exposed surface flatter than two feet horizontal to one foot vertical (2:1) or may require such other measures as he or she deems necessary for stability and safety.
(g)
Adjacent structures protection. Footings which may be affected by any excavation shall be underpinned or otherwise protected against settlement and shall be protected against lateral movement. Fills or other surcharge loads shall not be placed adjacent to any building or structure unless such building or structure is capable of withstanding the additional loads caused by such fill or surcharge. The rights of coterminous owners shall be as set forth in Civil Code § 832.
(h)
Setbacks. Unless otherwise recommended in this Chapter or in a soil or geologic investigation report and accepted by the Community Development and Services Department, this Code, and the latest County adopted version of the California Building Code shall be used for establishing setbacks for property boundaries, buildings and structures other than fences and retaining walls.
(i)
Drainage; structures or devices. Any drainage structure(s) or device(s) carrying surface water runoff required by this Chapter shall be designed and constructed in accordance with standards herein, the Yuba County Stormwater Quality Ordinance (Chapter 8.28), the Yuba County Standard Specifications and criteria authorized by the Public Works Director.
(j)
Drainage; discharge requirements.
(1)
All drainage facilities shall be designed and engineered to carry surface and subsurface waters to the nearest adequate street, storm drain, natural watercourse, or other juncture.
(2)
For engineered grading projects, the peak off-site storm water discharge from the project site shall not exceed pre-construction conditions unless the applicant demonstrates that downstream storm water conveyance systems have sufficient capacity to handle the increased flow rate without exceeding established design standards.
(k)
Drainage; water accumulation. All areas shall be graded and drained so that drainage will not cause erosion or endanger the stability of any cut or fill slope or any building or structure.
(l)
Drainage; protection of adjoining property. Discharging surface drainage onto neighboring properties shall be into historical drainage patterns and in such a manner that will not cause erosion or endanger any cut or fill slopes or any building or structure. Grading activities shall not redirect surface drainage from the site onto neighboring private properties that historically did not receive the drainage. Grading activities shall also not block or prevent drainage from neighboring properties that historically drained onto the property being graded.
(m)
Drainage; terrace drainage. Terraces at least eight feet in width shall be established at not more than 25 feet in height intervals for all cut and fill slopes exceeding 30 feet in height. Where only one terrace is required, it shall be at approximately mid-height. Suitable access shall be provided to permit proper cleaning and maintenance of terraces and terrace drains. Swales or ditches on terraces shall have a minimum depth of one foot, a minimum longitudinal grade of four percent, and a maximum longitudinal grade of 12 percent. Down-drains or drainage outlets shall be provided at approximately 300-foot intervals along the drainage terrace. Down-drains and drainage outlets shall be of approved materials and of adequate capacity to convey the intercepted waters to the point of disposal. If the drainage discharges onto natural ground, adequate erosion protection shall be provided.
(n)
Drainage; subsurface drainage. Cut and fill slopes shall be provided with surface and/or subsurface drainage as necessary for stability.
(o)
Erosion and sediment control.
(1)
Regardless of whether or not a grading permit is required, all grading and earthwork activities within unincorporated Yuba County shall employ best management practices to minimize erosion and to control sediment discharges to the maximum extent practicable in accordance with Yuba County standards, acceptable industry standards, and the most recently adopted version of the State Water Resources Control Board's "General Permit for Discharge of Storm Water Associated with Construction Activities."
(2)
The following shall apply to the control of erosion and sediment from grading operations:
a.
Grading plans shall be designed with long-term erosion and sediment control as a primary consideration. Erosion prevention and source control are to be emphasized over sediment controls and treatment.
b.
Grading operations shall provide erosion and sediment control measures, except upon a clear demonstration, to the satisfaction of the Community Development and Services Agency that at no stage of the work will there be any substantial risk of increased sediment discharge from the site. Temporary mulch, revegetation, or other stabilization methods shall be applied to areas where permanent revegetation or landscaping cannot be immediately implemented. Unless otherwise exempted in this Chapter, grading activity must be scheduled to ensure completion or winterization by October 1 of each year.
c.
Grading activity shall be conducted such that the smallest practicable area of erodible land is exposed at any one time during grading operations and the time of exposure is minimized. Land disturbance shall be limited to the minimum area necessary for construction.
d.
Natural features, including vegetation, terrain, watercourses and similar resources shall be protected and preserved wherever possible. Limits of grading shall be clearly defined and marked to prevent damage by construction equipment.
e.
Permanent vegetation and structures for erosion and sediment control shall be installed as soon as possible.
f.
Adequate provision shall be made for effective maintenance of temporary and permanent erosion and sediment control structures and vegetation. Sediment and other construction-related wastes shall be retained and properly managed on the site or properly disposed of off-site.
g.
Community Development and Services Agency may require that no topsoil shall be removed from the site. Topsoil overburden shall be stockpiled and redistributed where appropriate within the graded area after rough grading to provide a suitable base for seeding and planting. Runoff from the stockpiled area shall be controlled to prevent erosion and resultant sedimentation of receiving water.
h.
Runoff shall not be discharged from the site in quantities or at velocities substantially above those which occurred before grading except into drainage facilities, whose design has been specifically approved by the Community Development and Services Agency.
i.
The permittee shall take reasonable precautions to ensure that vehicles do not track or spill earth materials into public streets and shall immediately remove such materials if this occurs.
j.
All cut and fill slopes shall be adequately stabilized to prevent erosion and failure through temporary and permanent means.
k.
Control measures shall be employed to prevent transport of dust off the project site or into any drainage course or water body.
l.
Following construction, property owners shall maintain sedimentation and erosion control measures as may be required to reduce off-site discharges of sediment to the maximum extent practicable. As provided for in Section 11.23.080, Improvement Security Required, of this Chapter, the Community Development and Services Agency may require posting of security to ensure adequate development of necessary erosion and sedimentation control measures, including vegetative cover on cut and fill slopes.
(p)
Erosion and sediment control plans. Erosion and sediment control plans prepared pursuant to this Chapter shall comply with all of the following:
(1)
The erosion and sediment control plan need not be a separate sheet if all facilities and measures can be shown on the grading sheets without obscuring the clarity of either the grading plan or the erosion and sediment control plan.
(2)
An erosion and sediment control plan shall be required whenever:
a.
The graded portion of the site includes more than 10,000 square feet of area having a slope greater than ten percent;
b.
Clearing and grubbing areas of one acre or more regardless of slope;
c.
There is a significant risk that more than 2,500 square feet will be unprotected or inadequately protected from erosion during any portion of the rainy season;
d.
Grading will occur within 50 feet of any watercourse;
e.
The Community Development and Services Agency determines that the grading will or may pose a significant erosion, or sediment discharge hazard for any reason.
(3)
Sediment and erosion control measures must be in place or be capable of being placed within 24 hours, in the opinion of the Public Works Director, by October 1 or before any rain event. The Public Works Director may require suspension of any and all grading activities between October 1 and May 1 without prior notice.
(4)
Erosion and sediment control plans shall include an effective revegetation program to stabilize all disturbed areas, which will not be otherwise protected. All such areas where grading has been completed between April 1 and October 1 shall be planted by November 1. Graded areas completed at other times of the year shall be planted within 15 days of final soil disturbance or as approved by the Public Works Director. If revegetation is infeasible or cannot be expected to stabilize an erodible area with assurance during any part of the rainy season and the unstable area exceeds 2,500 square feet, additional erosion and sediment control measures or irrigation of planted slopes may be required as appropriate to prevent increased sediment discharge.
(5)
Erosion and sediment control plans shall be designed to prevent increased discharge of sediment at all stages of grading and development from initial disturbance of the ground to installation of all post-construction requirements at project completion. Every feasible effort shall be made to ensure that site stabilization is permanent. Plans shall indicate the implementation period and the stage of construction where applicable.
(6)
Erosion and sediment control plans shall comply with the recommendations of the responsible civil engineer, geotechnical engineer, engineering geologist, or landscape architect involved in preparation of the grading plans.
(7)
The structural and hydraulic adequacy of all stormwater containment or conveyance facilities shown on the erosion and sediment control plans shall be verified by a registered civil engineer, and he or she shall so attest on the plans. Sufficient calculations and supporting material to demonstrate such adequacy shall accompany the plans when submitted.
(8)
Erosion and sediment control plans shall be designed to meet anticipated field conditions.
(9)
Erosion and sediment control plans shall provide for inspection and repair of all erosion and sediment control facilities at the close of each working day during the rainy season and for specific sediment cleanout and vegetation maintenance criteria.
(10)
Erosion and sediment control plans shall comply with any and all standards and specifications adopted herein for the control of erosion and sedimentation on grading sites.
(q)
Emergency conditions. Should increased sediment discharge occur or become imminent, the permittee shall take all necessary steps to control or reduce such discharge. Such steps may include construction of additional facilities or removal or alteration of facilities required by approved erosion and sediment control plans. Facilities removed or altered shall be restored as soon as possible afterward or appropriate changes in the plan shall be immediately required pursuant to this Chapter. The permittee shall take prompt action to resolve emergency problems; otherwise the Community Development and Services Agency may institute abatement proceedings pursuant to provisions of Section 11.23.080, Improvement Security Required.
(r)
Vehicular ways. Vehicular ways shall conform to the grading requirements of this Chapter. Vehicular ways shall be graded and drained in such a manner that will not allow erosion or endanger the stability of any adjacent slope. Surface discharge onto adjoining property shall be controlled in such a manner that it does not cause erosion or endanger existing improvements. Bridges and culverts installed in watercourses must be reviewed by the Community Development and Services Agency and must be approved by the Public Works Director or designee and any other required permitting agency.
(a)
As a condition for the issuance of a permit, the Community Development and Services Agency may require the deposit of improvement security in sufficient amount deemed necessary to ensure performance of the work in the event of default on the part of permittee.
(b)
For all projects, the improvement security shall remain in effect until final inspections have been made and all grading work has been approved by the Community Development and Services Agency.
(c)
In addition to the improvement security, the Community Development and Services Agency may also require the deposit of maintenance security in sufficient amount deemed necessary to guarantee and maintain the grading work and to ensure the proper functioning of drainage systems and adequate erosion and sedimentation control. Such maintenance security shall be in a form acceptable to Yuba County and shall remain in effect for a period of one year after the date of acceptance of the improvements as designated in Subsection (b) above and this Subsection (c).
(d)
Required securities shall be in the form of cash, a certified or cashier's check, a letter of credit, a faithful performance bond executed by the applicant and a corporate surety authorized to do business in this State, or other instrument approved by the Community Development and Services Agency. All securities shall be payable to the Yuba County Community Development and Services Agency.
(e)
Upon satisfaction of applicable provisions of this Chapter, the improvement and maintenance security deposits will be released. However, upon failure to complete the work, failure to comply with all of the terms of the permit, or failure of the completed site to function properly to provide proper drainage or erosion and sedimentation control, the County may do the required work, or cause it to be done and collect from the permittee, or surety, all costs incurred thereto, including administrative, inspection and legal costs.
Violations of this Chapter shall be enforced pursuant to Chapter 11.67, Enforcement and Abatement Procedures.
(1)
Investigation fees; work without a permit. Whenever any work for which a permit is required by this Chapter has been commenced without first obtaining the permit, the Public Works Director shall require an investigation before issuing a permit for such work. In this case, the violator shall be charged for the department's labor and costs incurred during the investigation, in addition to paying double the standard permit fees.
The purposes of the landscaping regulations are to:
(1)
Create an aesthetically pleasing boundary between residential, commercial and industrial uses and roadways;
(2)
Promote development of an attractive, aesthetically pleasing environment;
(3)
Screen undesirable views and help define and organize public and private spaces;
(4)
Improve the air quality by replenishing oxygen and reducing smog;
(5)
Conserve energy by shading homes, commercial and industrial buildings, roads, and parking lots;
(6)
Improve property values by improving the appearance of the community;
(7)
Promote business and industry by improving image and public acceptance;
(8)
Ensure consistency with State law, including the Water Conservation in Landscaping Act of 2006 (AB 1881 also known as the California Model Water Efficient Landscape Ordinance);
(9)
Require ongoing maintenance of landscaping; and
(10)
Provide information so that plant materials can be appropriately selected and properly used.
The standards of this Chapter apply to all new development, additions (other than to single-unit dwellings or duplexes) that expand existing floor area by 25 percent or more, or changes in use excluding landscaping that is part of a registered historic site, plant collections as part of botanical gardens and arboretums open to the public, or ecological restoration projects that do not require a permanent irrigation system. In addition, projects are also subject to the landscape guidelines provided in the Yuba County Design Guidelines.
(a)
Street facing property lines.
(1)
Residential developments. All front and street-side yard setback areas shall be landscaped. At least one deciduous street tree from the approved tree list shall be planted per 40 lineal feet of frontage. Where detached sidewalks are provided, landscaping and street trees shall be provided in the area between the sidewalk and curb.
(2)
Development in commercial and mixed-use districts, industrial districts, and public, semi-public, and special use districts.
a.
A perimeter planter at least five feet wide, excluding curbing, shall be provided adjacent to street rights-of-way and buildings with exception of the downtown core district. Where parking is located adjacent to a public right-of-way, the landscape planter shall be at least ten feet wide with the exception of mixed-use corridors identified in the General Plan. Along the mixed-use corridors identified in the General Plan, alternative landscape plans for street frontages that include a combination of tree wells, landscape planters, plaza/seating areas, outdoor furniture, and/or public art may be approved as part of a streetscape plan or individual project design.
b.
Any area within the street right-of-way between the edge of the sidewalk or road shoulder and outer edge of the property shall be landscaped with trees, shrubs, and groundcover, unless the requirement is waived by the Public Works Director.
c.
At least one deciduous street tree from the approved tree list (see Yuba County design guidelines) shall be planted per 40 lineal feet of frontage. Trees shall be planted pursuant to the Street Tree Specifications listed in the Yuba County Standards Manual.
d.
Within the downtown core district, new developments shall provide and maintain irrigated planter boxes, trees within irrigated tree wells and/or decorative pots with plants adjacent to the front building facade.
(b)
Interior property lines abutting residential district or uses. Wherever a non-residential use is located adjacent to a residential district, a landscaped area at least ten feet wide shall be provided along interior property lines. The landscaped area shall include a mix of trees and shrubs with at least 50 percent consisting of evergreen species and at least one tree shall be planted per 30 lineal feet. When appropriate, paseos or other pedestrian access points within the landscape area may be approved through the design review permit. In certain circumstances, walls may also be required for noise attenuation or to address potential safety or compatibility issues.
Figure 11.24.030(b): Interior Property Lines
(c)
Building perimeters. The portions of a nonresidential building that front a parking area or plaza shall have one or more landscape planters installed along a minimum 20 percent of such building face(s). The minimum width of the planter shall be five feet.
Figure 11.24.030(c): Building Perimeters
(d)
Parking lot. Parking areas shall be landscaped according to the requirements of Section 11.25.100, Design Standards for Parking Lots.
(a)
Agricultural districts, rural community districts, and natural resource districts that have commercial, industrial, public/semi-public, ranch marketing, or transportation uses shall provide landscaping in the following areas:
(1)
Parking areas abutting public roads shall provide a minimum five-foot wide landscape planter adjacent to the right-of-way except where driveways are installed. Within the planter there shall be at least one tree planted in an irrigated and landscaped area for each 40 feet of street frontage.
a.
Required landscaping shall include varied tree and plant species with focus on native plant species. Landscape areas not covered with live plant material shall be covered with gravel, landscaping rock, concrete, decomposed granite, or other fire-resistant material.
(2)
Where paved parking areas are required, landscape planters shall be provided as outlined in Section 11.25.100.(2)m, Parking Lot Landscaping.
(3)
Landscape planters may be required as determined through a discretionary permit to address noise, safety, or compatibility issues with adjacent properties.
(a)
Applicability. This Section shall apply to all zone districts and projects that are subject to the landscape requirements listed in Sections 11.24.030 and 11.24.040.
(b)
Minimum dimension of landscaped areas. For non-residential projects, no landscape planter that is to be counted toward the required landscape area shall be smaller than 25 square feet in area, or three feet in any horizontal dimension, excluding curbing.
(c)
Visibility. Trees and shrubs shall be planted and maintained so that at maturity they do not interfere with traffic safety sight areas, or public safety, and so that they comply with Section 11.19.130, Visibility at Intersections and Driveways. In the case of a conflict between landscaping requirements and requirements of Section 11.19.130, Visibility at Intersections and Driveways, the visibility requirements shall govern.
(a)
Applicability. This Section shall apply to all zone districts and projects that are subject to the landscape requirements listed in Sections 11.24.030 and 11.24.040.
(b)
General. Landscaping shall consist of live plant materials and may include a combination of groundcovers, shrubs, vines, and trees. Landscaping may also include incidental features such as artificial turf, stepping stones, benches, fountains, sculptures, decorative gravel or stones, or other ornamental features, placed within a landscaped setting (benches, sculptures, and similar items shall not be located within residential greenway strips).
(1)
Plants having similar water use shall be grouped together.
(2)
No more than 35 percent of any required landscaped area may be covered with hard surfaces such as concrete, gravel, landscaping rock, paving stones, brick, or similar materials that are void of live plant materials.
a.
For non-residential projects, driveways and drive aisles are not considered as part of the required landscape area. For residential projects, driveways less than 30 feet wide and less than 50 percent of the width of the lot are not considered part of the required front yard or street-side landscape areas. Refer to Public Works Standard Plans and Specifications for Standards Driveways Plans.
b.
Artificial turf. Artificial turf may be utilized as part of the landscape plan when it meets the following criteria:
1.
Shall be installed over soil and include a drainage system that allows for water infiltration to reduce run-off.
2.
When installed in areas that require the inclusion of trees (i.e. greenway strips, residential front and street side yards) the required trees and irrigation shall be incorporated into the artificial turf area.
3.
Shall not be utilized on slopes over 25 percent.
4.
Shall not comprise over 50 percent of total required landscape area.
c.
Landscape area that utilize hard surfaces but contain live plant material that will provide at least 60 percent coverage of the landscape area at maturity will not count against the 35 percent restriction on hardscape areas.
1.
Non turf landscape areas that utilize bark shall also include live plant material that will provide at least 60 percent coverage of the landscape area at maturity.
(3)
Plant materials shall be selected from among those species and varieties known to thrive in the Yuba County climate and selected from the Approved Tree List and Recommended Ground Cover and Shrub List.
(4)
Gardens and other areas dedicated to edible plants are considered landscaped areas and count toward required landscaping.
(5)
Installation of invasive plant species is prohibited as listed in the California Invasive Plant Council (Cal-IPC) list of Exotic Pest Plants of Greatest Ecological Concern in California.
(6)
Ground cover. Groundcover may include grasses (except as limited by any applicable turf/sod allowance). The use of mulch is encouraged to prevent weeds and water evaporation but is not a substitute for ground cover plants.
a.
Species and varieties. Whenever practicable, ground covers shall be selected from the Recommended Ground Cover and Shrub List.
b.
Size. Ground cover plants other than grasses must be at least the four-inch pot size at the time of planting.
c.
Spacing. Areas planted in ground cover plants other than grass seed or sod must be planted at a rate of one per 12 inches on center.
Figure 11.24.060(a)(6): Ground Cover Spacing
(7)
Shrubs.
a.
Species and varieties. Whenever practicable, shrubs shall be selected from the Recommended Ground Cover and Shrub List.
b.
Size. Shrubs shall be at least one-gallon size at the time of planting.
c.
Spacing. When planted to serve as a hedge or screen, shrubs shall be planted with two to six feet of spacing, depending on the recommendations for the species and variety.
(8)
Trees.
a.
Existing trees. Existing healthy trees shall be maintained whenever possible and may be used in lieu of planting new trees.
b.
Setbacks. Trees shall be planted away from public sidewalks or individual driveways in accordance with the minimum setbacks specified in the Approved Tree List.
c.
Size. At the time of planting, all trees shall be a minimum 15-gallon size with a one-inch diameter at breast height (DBH).
d.
Staking. Newly planted trees shall be supported with stakes or guy wires in conformance with Yuba County Department of Public Works Street Tree Planting Specifications.
Figure 11.24.060(a)(8): Tree Staking
(9)
Mulch. A minimum three-inch layer of mulch and landscape fabric for weed control shall be applied on all exposed soil surfaces of planting areas except in turf areas, creeping or rooting ground covers, or other special planting situations in which mulch is not recommended (i.e. in high fire severity zones). Stabilizing mulching products shall be used on slopes. Highly flammable mulches (i.e. finely shredded bark and plant fibers. pine needles, and shredded rubber) are prohibited in production housing, non-residential projects, medians, greenway strips, parking strips, and common areas.
(10)
Water features. Where water features are utilized they shall include the following:
a.
Recirculating water systems;
b.
Shall be included in the high water use hydrozone area of the water budget calculations; and
c.
Pool and spa covers are highly recommended.
The purpose of this Section is to comply with the Water Conservation in Landscaping Act of 2006.
(1)
Applicability. This Section shall apply to all of the following:
a.
New development projects with an aggregate landscape area equal to or greater than 500 square feet requiring a building or landscape permit, plan check or design review permit.
b.
Rehabilitated landscape projects with an aggregate landscape area equal to or greater than 2,500 square feet requiring a building or landscaping permit, plan check, or design review permit.
c.
This Section does not apply to the following types of projects:
1.
Registered local, state or federal historical sites;
2.
Ecological restoration projects that do not require a permanent irrigation system;
3.
Mined-land reclamation projects that do not require a permanent irrigation system; or
4.
Existing plant collections, as part of botanical gardens and arboretums open to the public.
(2)
Production housing. Where developer installed landscaping is only provided within the front yard and street side portions of the parcel; the front yard landscaping plan shall demonstrate compliance with Section 11.24.060. (Landscape Materials) and Section 11.24.070 (Water Efficient Landscape Requirements) regardless of the size of the front yard landscape area.
(3)
Compliance requirements. Any project with an aggregate landscape area of 2,500 square feet or less may comply with the prescriptive performance requirements listed below. The aggregate landscape area includes all required landscape areas identified in Sections 11.19.030 and 11.19.040 along with any additional landscaped areas that are irrigated. Projects that exceed 2,500 square feet of aggregate landscape area or that wish to demonstrate alternative compliance shall meet the requirements established in Section 11.24.060(d), Alternative Compliance.
a.
Areas landscaped with live plant material shall incorporate compost at a rate of at least four cubic yards per 1,000 square feet to a depth of six inches (unless contra-indicated by a soil test).
b.
Exclusive of vegetable and edible flower garden areas, at least 75 percent of all plants and trees within residential projects and 100 percent for non-residential projects must be native or low water use. Landscape areas that utilize recycled water are excluded from this requirement.
c.
Turf. Non-artificial turf shall comply with the following:
1.
Within residential projects, a maximum of 25 percent of the required landscape areas shall be turf or planted with other high water use plants.
2.
Within non-residential projects turf is prohibited except for turf areas that are irrigated with recycled water or comprise an essential component of a project (i.e. golf courses, picnic areas, or playing fields), which are exempt from this limit.
3.
The installation of turf on slopes greater than 25 percent is prohibited (one foot vertical elevation change for every four feet of horizontal).
4.
Turf areas shall be of a size and design to prevent overspray of irrigation onto hardscape areas.
5.
Turf is prohibited in greenways that are less than ten feet wide, unless the greenway is adjacent to a parking strip and used to enter and exit vehicles. Any turf in greenways must be irrigated by a sub-surface irrigation system or by other technology that creates no overspray or runoff.
6.
Turf and high-water use plants are prohibited in street medians.
(4)
Alternative compliance. This Section shall apply to all projects with an aggregate landscape area over 2,500 square feet or when an applicant wants to demonstrate that the intent of the landscape requirements of this Chapter can be achieved through an Alternative Landscape Plan. Alternative Landscape Plans shall be prepared by a California Registered Landscape Architect. The Alternative Landscape Plan shall be prepared in accordance with the principles and design criteria set forth in this Section and shall clearly describe the modifications being requested from the provisions of this Section and how they reflect the evaluation criteria listed below:
a.
Innovative use of plant materials and design techniques in response to unique characteristics of the site or the proposed use.
b.
Preservation or incorporation of existing native vegetation.
c.
Incorporation of naturalistic design principles, such as variations in topography, meandering or curvilinear plantings, and grouping of dominant plant materials (trees, large shrubs) in a manner consistent with existing native vegetation.
d.
Integration of landscaping and pedestrian facilities in a manner that improves access or incorporates pedestrian-friendly design. This may include reduced ground-level planting along the front setback if canopy shade trees along sidewalks are provided.
e.
Use of additional shade trees to create a greater canopy effect.
f.
A greater degree of compatibility with surrounding uses than a standard landscape plan would offer.
g.
Water use is minimized. The estimated total water use (ETWU) of the proposed landscaping on a site shall not exceed the maximum applied water allowance (MAWA) limitations established by the State of California pursuant to the most current adopted California Model Water Efficient Landscape Ordinance.
1.
Variables that may be used in water efficiency calculations.
i.
Landscaped Area (LA). Total landscaped area, expressed in square feet, including all areas dedicated to planting, turf, and water features. The landscape area does not include footprints of building or structures, sidewalks, driveways, parking lots, decks, patios, gravel or stone walks, or other pervious or non-pervious hardscape, and other non-irrigated areas designated for non-development (e.g., open spaces and existing native vegetation). Landscaped area (LA) includes special landscaped areas (SLA).
ii.
Special Landscaped Areas (SLA). Area of landscape, expressed in square feet, dedicated solely to edible plants, areas irrigated with recycled water, water features using recycled water, and areas dedicated to active play such as parks, sports fields, golf courses, and where turf provides a playing surface.
iii.
Plant Factor Adjustment (PFA). The sum of the products of the area in each planting type multiplied by the plant factor according to the California Department of Water Resources study, Water Use Classification of Landscape Species (WUCOLS) for that planting type.
iv.
Irrigation Efficiency (IE). Amount of water beneficially used divided by the amount of water applied.
A landscape plan shall be submitted with the permit application for all projects for which landscaping is required.
(1)
Information required. Landscape plans shall be drawn to scale and shall at a minimum include the following:
a.
Project type (i.e. new residential, new non-residential, rehabilitated, homeowner-installed, etc.).
b.
Total landscape area (square feet) including a breakdown of area dedicated to turf/high water uses, hardscape, and live plant material.
c.
Water supply type (i.e. potable, recycled, well, graywater) and identify water purveyor if not served by private well.
d.
Proposed plant locations, species, sizes, and water use needs (i.e. low, medium, or high as identified on an applicable Yuba County plant list, the California Department of Water Resources study, Water Use Classification of Landscape Species (WUCOLS), or other plant list approved by the Planning Director). All water features shall be identified as high water use and temporarily irrigated areas shall be identified as low water use.
e.
Location of any existing trees over six inches in diameter, and whether each such tree is proposed for retention or removal.
f.
Location and type of any existing and/or proposed paving or hardscape material.
g.
Irrigation plan that at a minimum indicates the location, type and size of all components of the irrigation system and demonstrates compliance with the requirements of this Section.
h.
Any additional proposed landscape elements and any other measures to facilitate plant growth or control erosion.
i.
Provide a statement signed by the preparer of the landscape plan as follows: "I have complied with the landscape criteria of the Yuba County Landscape Ordinance Chapter 11.24.
(2)
Additional information required for projects over 2,500 square feet of aggregate landscape area or alternative landscape plans. In addition to the above information these projects shall include the following information:
a.
Submit a soil management report consistent with the requirements of the current California Model Water Efficient Landscape Ordinance. Production home developments and similar large landscape projects shall conduct a soil sampling rate equivalent to one in seven lots or approximately 15 percent.
b.
The landscape design plan shall also:
1.
Delineate and label each hydrozone by number, letter, or other method;
2.
Identify each hydrozone as low, moderate, high, or mixed water use;
3.
Identify areas designated for recreation, edible plants, or recycled water;
4.
Identify soil amendments, type and quantity;
5.
Identify type of mulch and application depth;
6.
Identify type and surface areas of water features;
7.
Identify hardscape (pervious and non-pervious areas);
8.
Identify any rain harvesting or catchment technologies; Identify any applicable graywater discharge piping, system components and areas of distribution.
(3)
Preparation by qualified person. The landscape and irrigation plans shall be prepared by a qualified Landscape Architect.
All new landscaping shall be irrigated with an irrigation system. The Director may waive this requirement based on plant water needs and site characteristics (i.e. landscape areas that do not require irrigation once established).
(1)
The irrigation system and its related components shall be planned and designed to allow for proper installation, management and maintenance.
(2)
All irrigation systems shall be designed to avoid runoff, low head drainage, overspray, or other similar conditions where water flows onto adjacent property, non-irrigated areas, walks, roadways, or structures.
(3)
Automatic irrigation controllers and sensors are required. Controllers may either be weather-based (rain sensors) or soil moisture-based controllers that automatically adjust irrigation in response to changes in plants' needs as weather conditions change. The controller shall also be of a type which does not lose programming date in the event the primary power source is interrupted.
(4)
Proper irrigation equipment and schedules, including features such as repeat cycles, shall be used to closely match application rates to infiltration rates determined by a soil percolation test, therefore minimizing runoff.
(5)
Low-volume irrigation shall be required in mulched areas, in areas with slope greater than 25 percent, and in any narrow or irregularly shaped areas that are less than eight feet in width in any direction.
(6)
Pressure regulators shall be installed on the irrigation system to ensure the dynamic pressure of the system is within the manufacturers recommended pressure range.
(7)
Overhead irrigation should occur before 10:00 a.m. and after 6:00 p.m. between April 1st and October 1st.
(8)
Recirculating water shall be used for decorative water features.
(9)
All irrigation shall be subject to restrictions put forth by the State, County of Yuba or local water purveyor during periods of drought.
(10)
Areas less than ten feet in width in any direction shall be irrigated with subsurface irrigation or other means that produces no runoff or overspray.
(11)
Irrigation systems shall consist of low-volume emitters (i.e. drip emitters and microspray) or the following:
a.
Low volume rotary type heads, with check valves and pressure regulation for turf areas where turf is allowed);
b.
Sprinkler heads and other emission devices with matched precipitation rates, unless otherwise directed by manufacturer's recommendations; and
c.
Separate valves for each plant hydrozone.
(12)
Landscape water meters, defined as either a dedicated water service meter or private submeter shall be installed for all non-residential irrigated landscapes of 1,000 square feet but no more than 5,000 square feet and all residential irrigated landscapes of 5,000 square feet or greater. A landscape water meter may be either a customer service meter dedicated to landscape use provided by the local water purveyor or a privately owned meter or submeter.
(13)
Landscape and irrigation plans for projects over 2,500 square feet of aggregate landscape area or utilizing an Alternative Landscape Plan shall demonstrate compliance with any additional requirements of Subsection 492.7, Irrigation Design Plan of the California Model Water Efficient Landscape Ordinance.
(a)
Consistency with approved plans. All landscaping shall be installed consistent with approved plans and specifications, in a manner designed to encourage and maintain healthy plant growth.
(b)
Timing of installation. Required landscaping shall be installed prior to the issuance of a Certificate of Occupancy for the project.
(c)
Exception—Assurance of landscaping completion. The Planning Director may permit the required landscaping to be installed within 120 days after the issuance of a Certificate of Occupancy in special circumstances related to weather conditions or plant availability. A surety in the amount of 150 percent of the estimated cost of landscaping, including materials and labor, as well as an agreement that the required landscaping will be installed within 120 days, must be filed with the County along with any applicable processing fee to assure completion of landscaping installation within such time. The surety may take the form of cash deposit, irrevocable letter of credit or bond; and together with the agreement, would provide for payment to the County of any costs incurred in contracting for completion of the required landscaping as well as grant the County or its contractor access to property in event County must install improvements.
(d)
Certification of completion. Upon completion of the installation of the landscaping and irrigation system, a certificate of completion shall be submitted to the County indicating that the plants were installed as specified and that the irrigation system was installed as designed, along with a list of any deficiencies. A final inspection to verify completion may be conducted by the County.
(1)
Production housing projects, projects with over 2,500 square feet of aggregate landscape area or alternative landscape plans shall also include the following as part of the certificate of completion:
a.
The certificate shall be signed by licensed landscape contractor, the signer of the irrigation design plan, or signer of the landscape design plan;
b.
Shall indicate project has been installed per approved plans or where there have been significant changes made in the field during construction, "as built" plans indicating compliance with the County Code shall be included with the certification;
c.
A diagram of the irrigation plan with hydrozones shall be kept with the irrigation controller for subsequent management purposes;
d.
Copy of the irrigation audit report consistent with Section 492.12 of the California Model Water Efficient Landscape Ordinance shall be submitted to the County; and
e.
Statement indicating that the irrigation scheduling and maintenance schedules have been provided to the owner and that a copy of the certificate of completion shall be provided to local water purveyor.
This Section addresses the appropriate long-term care and maintenance of all landscaping provided for commercial, multifamily, industrial, and institutional developments. It is also intended to set provisions for the removal and replacement of unhealthy trees and or hazardous conditions and provide adequate clearance and visibility of merchant signage, when the aesthetics of the tree and shading requirements will not be reduced.
(1)
All required landscaping and irrigation (e.g. sprinklers) shall be maintained and replaced for the life span of the project. Commercial corridors and commercial landscaping maintenance is the responsibility of the Builder/Developer. Landscaping maintenance on residential properties is the responsibility of the property owner.
(2)
All plant materials (trees, shrubs, and groundcovers) shall be maintained free from physical damage or injury arising from vehicle encroachment, lack of water, weather events, chemical damage, insects and other pests, and diseases. Plant materials showing such damage shall be replaced with the same or similar species from the Approved Tree List, Recommended Ground Cover and Shrub List, or shall be approved by the Planning Director. Planting areas shall be kept free from weeds, debris, and undesirable materials which may be detrimental to safety, drainage, or appearance.
(3)
It is the responsibility of the property owners to seek professional advice and spray and treat trees, shrubs, and groundcover for diseases which can be successfully controlled if such untreated diseases are capable of destroying an infected tree or other trees within a project.
(4)
Tree removal shall be limited to trees which are in poor health, structurally distressed, or imminently hazardous to persons or property. The removal of a tree shall be the final recourse upon determining that it is infeasible to save the tree by any other method (e.g., pruning, treatment of diseases, fertilizing). Tress shall be replaced with the same or similar species from the Approved Tree List or shall be approved by the Planning Director.
(5)
Yuba County has the authority to enforce compliance with landscaping care and maintenance.
The purposes of the parking and loading regulations are to:
(1)
Ensure that adequate off-street parking and loading facilities are provided for new land uses and for alterations and enlargements of existing uses.
(2)
Contribute to a balanced transportation system with a choice of transit, bicycle, pedestrian, and private automobile modes.
(3)
Encourage the use of bicycles by providing safe and convenient places to park bicycles.
(4)
Facilitate the development of common parking areas that serve multiple establishments or uses.
(5)
Offer flexible means of minimizing the amount of area devoted to motor vehicle parking by allowing reductions to the number of required spaces for land uses with lower parking demand characteristics and for shared parking facilities serving uses with different peak demand times.
(6)
Provide safe and orderly circulation, loading, unloading, and parking within parking areas, and minimize conflicts between pedestrian and vehicular circulation.
(7)
Ensure that parking and loading facilities are designed with adequate landscaping, screening, and buffering in order to improve and soften their appearance, provide shade, and buffer surrounding land uses from potential impacts.
The requirements of this Chapter apply to the establishment, alteration, expansion, or change of any use or structure, as provided in this Section.
(1)
New buildings and land uses. On-site parking shall be provided according to the provisions of this Chapter at the time any main building or structure is erected or any new land use is established.
(2)
Reconstruction, expansion and change in use of existing non-residential buildings.
a.
Changes in use or expansions of floor area resulting in three or fewer additional parking spaces are exempt from having to provide additional parking so long as all handicap accessible parking requirements are met. All expansions within a five year period shall count towards the cumulative total of three additional parking spaces.
b.
Expansions in use or floor area up to 25 percent but resulting in less than 15 additional parking spaces shall provide for the additional on-site parking or loading spaces pursuant to Table 11.25.040. The existing parking may be maintained, and only the additional parking shall be subject to the requirements of Section 11.25.100, Design Standards for Parking Lots.
c.
Changes in use resulting in four or more additional parking spaces or expansions in use or floor area greater than 25 percent or more than 15 parking spaces shall require both the existing parking and additional parking to meet the standards of Section 11.25.100; Design Standards for Parking Lots. A change in occupancy is not considered a change in use unless the new occupant is in a different use classification than the former occupant.
(3)
Alterations that increase the number of dwelling units. The creation of additional dwelling units through the alteration of an existing building or construction of an additional structure or structures requires the provision of on-site parking to serve the new dwelling units. This requirement does not apply when sufficient on-site parking exists to provide the number of spaces required for both the existing and new dwelling units.
(4)
Bicycle parking. Bicycle parking shall be required pursuant to Section 11.25.080, Bicycle Parking.
(5)
When constructed. On-site parking facilities including bicycle parking required by this Chapter shall be constructed or installed prior to the issuance of a Certificate of Occupancy for the uses that they serve.
(a)
Existing parking and loading to be maintained. No existing parking or loading serving any use may be reduced in amount or changed in design, location or maintenance below the requirements for such use, unless equivalent substitute parking or loading facilities are provided and approved by the Planning Director.
(b)
Use of required parking spaces. Required off-street parking areas shall be used exclusively for the temporary parking of vehicles and shall not be used for the sale, lease, display, repair, or storage of vehicles, trailers, boats, campers, mobile homes, merchandise, or equipment, or for any other use, unless specifically authorized by another provision of this Code.
(c)
Non-conforming parking or loading. An existing use of land or structure shall not be deemed to be non-conforming solely because of a lack of parking or loading facilities required by this Chapter, provided that facilities used for parking and loading as of the date of adoption of this Code are not reduced in number to less than that required by this Chapter.
(d)
Accessibility. Parking must be accessible for its intended purpose during all business hours.
(e)
Maintenance of required parking spaces. No garage, carport, or other designated parking area may be converted to another use unless the converted parking spaces are replaced with on-site parking that meets all requirements of this Chapter.
Off-street motor vehicle parking shall be provided according to the ratios prescribed in Table 11.25.040, Required Off-Street Parking Spaces, and according to the following provisions for calculation of required spaces:
(1)
Calculation of required spaces. The number of required parking spaces shall be calculated according to the following rules:
a.
Fractions. If the calculation of required parking or loading spaces results in the requirement of a fractional space, such fraction, if one-half or greater, shall be considered one additional space; if the fraction is less than one-half, it shall result in no additional required spaces.
b.
Gross floor area. Where an on-site parking or loading requirement is stated as a ratio of parking spaces to area, the area is assumed to be gross floor area (which includes interior walls) unless otherwise stated.
c.
Employees. Where an on-site parking or loading requirement is stated as a ratio of parking spaces to employees, the number of employees shall be based on the largest shift that occurs in a typical week.
d.
Bedrooms. Where an on-site parking requirement is stated as a ratio of parking spaces to bedrooms, any rooms having the potential of being a bedroom and meeting the standards of the California Building Code as a sleeping room shall be counted as a bedroom.
e.
Students or clients. Where a parking or loading requirement is stated as a ratio of parking spaces to students (including children in day care), the number is assumed to be the number of students or clients at the State-certified capacity, or at Building Code Occupancy where no State certification is required.
f.
Seats. Where parking requirements are stated as a ratio of parking spaces to fixed seats, each 24 inches of bench-type seating at maximum seating capacity is counted as one seat.
(2)
Sites with multiple uses. If more than one use is located on a site, the number of required off-street parking spaces shall be equal to the sum of the requirements calculated separately for each use unless a reduction for shared parking is approved pursuant to Subsection 11.25.050(C), Shared Parking.
(3)
Uses not specified. The parking requirement for any use not listed in Table 11.25.040, the Zoning Administrator shall establish the parking requirement based on the particular characteristics of the proposed use, and any other relevant data regarding parking demand. The Zoning Administrator may require the applicant to submit parking studies or any other information needed to assess parking demand for the proposed project. Where a conditional use permit or minor use permit is required for the use, the decision-making authority shall establish the parking requirement based on the parking study and other information in the record as part of the review process.
(4)
Minimum number of required spaces. For each land use, applicant shall be provided at least the number of off-street motor vehicle parking spaces stated in Table 11.25.040, Required Off-Street Parking Spaces.
(5)
Specific plan, area plan, and/or community plan provisions. A specific plan, area plan, or community plan may establish parking requirements based upon the characteristics of the area covered by the plan.
(a)
Motorcycle and scooter parking. For any nonresidential use providing 20 or more off-street spaces, a maximum of two required off-street parking spaces per 20 vehicle spaces may be reduced in size or otherwise redesigned to accommodate parking for motorcycles and scooters. When provided, motorcycle and scooter parking must be identified by a sign. Motorcycle and scooter parking shall be counted concurrently as part of the minimum number of spaces required for the development.
(b)
Credit for on-street spaces. On-street parking spaces located immediately adjacent to the frontage of properties in the NMX, DC, and CMX districts may be counted toward required off-street parking for non-residential uses. One on-street parking space may be substituted for each required off-street space. These provisions only apply to street frontages where on-street parking is allowed.
(c)
Shared parking. Where a shared parking facility serving more than one use will be provided, the total number of required parking spaces may be reduced (from the number that would be required if each use provided parking separately) with approval of a waiver.
(1)
Findings for approval. In order to approve a reduction in the total number of spaces for a shared parking facility, the decision making authority must find that:
a.
The proposed shared parking to be provided will be adequate to serve each use;
b.
The peak hours of use will not overlap or coincide to the degree that peak demand for parking spaces from all uses will be greater than the total supply of spaces;
c.
Parking demand generated by the project will not exceed the capacity of or have a detrimental impact on the supply of on-street parking in the surrounding area;
d.
If required, a parking demand study prepared by an independent traffic engineering professional approved by the County supports the proposed reduction; and
e.
If a shared parking facility will serve more than one property, a parking agreement has been prepared consistent with the provisions of Subsection 11.25.070(C), Off-Site Parking Facilities.
(2)
Conditions for approval. The decision-making authority may require additional documents, covenants, deed restrictions, or other agreements as it deems necessary to ensure that the required parking spaces provided are maintained and uses with similar hours and parking requirements as those uses sharing the parking facilities remain for the life of the project.
(d)
Other parking reductions. Required parking for any use may be reduced through approval of a waiver.
(1)
Findings for approval. The decision-making authority may only approve a parking reduction if it finds that:
a.
Special conditions—including but not limited to the nature of the proposed operation; proximity to frequent transit service; transportation characteristics of persons residing, working, or visiting the site; or because the applicant has undertaken a transportation demand management program—exist that will reduce parking demand at the site below the level of the normal requirement;
b.
The use will adequately be served by the proposed on-site parking;
c.
Parking demand generated by the project will not exceed the capacity of or have a detrimental impact on the supply of on-street parking in the surrounding area; and
d.
If required, a parking demand study prepared by an independent traffic engineering professional approved by the County supports the proposed reduction.
(e)
Parking demand study. In order for the decision-making authority to evaluate a project's compliance with the required findings for approval, the Planning Director may require submission of a parking demand study prepared by an independent traffic engineering professional approved by the County that substantiates the basis for granting a reduction in required parking spaces.
(f)
Monitoring of TDM programs. Any project that is granted a parking reduction on the basis of transportation demand management (TDM) measures that will be incorporated to reduce parking demand shall submit an annual status report to the County. The report shall be in a manner prescribed by the Planning Director, and shall describe the implementation and maintenance of TDM measures and the parking demand generated by the project. Annual status reports will be reviewed to determine if property owners have implemented and/or maintained the TDM Program. County staff may request auditable documentation to determine compliance.
If a parking assessment district has been established, a fee may be paid to the County in lieu of providing required parking within the district.
(1)
In-lieu fee amount. The amount of the in-lieu fee shall be calculated and paid as set forth in a resolution of the Board of Supervisors.
(2)
Use of funds. In-lieu fees shall be used for programs to reduce parking impacts including, but not limited to, the costs of any of the following:
a.
Off-street parking facilities, including acquisition, development, and maintenance of parking facilities located in the parking assessment district;
b.
Mass transit equipment, including stock and attendant facilities serving the area in which the buildings for which the payments are made are located;
c.
Transit or paratransit passes, coupons, and tickets to be made available at a discount to employees and customers and to promote and support incentives for employee ride-sharing and transit use; or
d.
Transportation system management projects.
(a)
Residential uses. Required parking for residential uses shall be located on the same lot as the dwelling served, or in an off-site parking facility as provided in Subsection (c).
(b)
Nonresidential uses. Required parking spaces serving non-residential uses shall be located on the same lot as the use they serve, or in an off-site parking facility as provided in Subsection (c).
(c)
Off-Site parking facilities. A parking facility serving one or more uses may be located on a site other than the site of one or more such use(s) if a Minor Use Permit is approved and the standards of this Subsection are met.
(1)
Location. Any off-site parking facility must be located within 400 feet—or in the case of a residential use, within 100 feet—along an accessible walkway, of the principal entrance containing the use(s) for which the parking is required.
(2)
Parking agreement. A written parking agreement shall be submitted with the application for an off-site parking facility. The agreement shall be subject to review and approval by the County Counsel and shall subsequently be recorded in the County Recorder's Office. The parking agreement shall include the following.
a.
A guarantee among the landowner for access to and use of the parking facility; and
b.
A guarantee that the spaces to be provided will be maintained and reserved for the uses served for as long as such uses are in operation.
Within the valley growth boundary, parking for bicycles shall be provided according to the standards of this Section in conjunction with the establishment of any new land use or building, as well as in conjunction with any change in use, alteration, or expansion.
(1)
Short-term bicycle parking. Short-term bicycle parking shall be provided in order to serve shoppers, customers, messengers, guests and other visitors to a site who generally stay for a short time.
a.
Parking spaces required. For the following uses, a minimum of one bicycle space shall be provided for every ten automobile spaces for the first 200 automobile parking spaces required, and one bicycle parking space shall be required for every 100 automobile spaces over the first 200 automobile parking spaces required. A minimum of two bicycle parking spaces shall be required per establishment:
1.
Multi-unit residential and single room occupancy uses with four or more units. Outdoor bicycle parking requirements may be reduced by 50 percent for projects that provide at least one enclosed private garage space per dwelling unit.
2.
Boarding facilities and agricultural labor housing with four or more separately rentable beds, bedrooms, or units.
3.
All public and semi-public uses except cemetery.
4.
All commercial uses except kennels, food preparation, vehicle sales and services, and lodging.
5.
Transportation passenger terminals.
b.
Bike parking plan for large entertainment and recreation facilities. Outdoor motor vehicle racing facilities, amphitheaters, entertainment facilities, or equestrian and rodeo facilities having an occupancy capacity in excess of 5,000 persons shall submit a proposed bicycle parking plan in conjunction with the required automobile parking plan for approval by the decision-making authority.
c.
Location. Short-term bicycle parking must be located outside of the public right-of-way and pedestrian walkways and within 50 feet of a main entrance to the building or use it serves.
1.
Shopping centers. In a shopping center, bicycle parking must be located within 50 feet of an entrance to each anchor store. Bicycle parking shall be visible from the street or from the main building entrance, or a sign must be posted at the main building entrance indicating the location of the parking.
2.
Mixed-use districts. Bicycle parking for establishments that abut the public sidewalk and are located in the CMX, DC, or NMX districts may be located within the public right-of-way, provided that an unobstructed sidewalk clearance of six feet is maintained for pedestrians at all times.
d.
Anchoring and security. For each short-term bicycle parking space required, a stationary, securely anchored object shall be provided to which a bicycle frame and at least one wheel can be secured with a high-security U-shaped shackle lock if both wheels are left on the bicycle. One such object may serve multiple bicycle parking spaces.
e.
Size and accessibility. Each short-term bicycle parking space shall be a minimum of two feet in width and six feet in length and shall be accessible without moving another bicycle. Two feet of clearance shall be provided between bicycle parking spaces and adjacent walls, poles, landscaping, street furniture, drive aisles, and pedestrian ways; at least five feet of clearance shall be provided from automobile parking spaces.
Figure 11.25.080: Short-Term Bicycle Parking
(2)
Long-term bicycle parking. Long-term bicycle parking shall be provided in order to serve employees, students, residents, commuters, and other persons who generally stay at a site for four hours or longer.
a.
Parking spaces required. Long-term bicycle parking spaces shall be provided at the following ratios.
1.
Nonresidential uses. Any individual establishment with 50 or more employees shall provide long-term bicycle parking at a minimum ratio of one bicycle space per 100 automobile spaces.
2.
Parking structures. Long-term bicycle parking shall be provided at a minimum ratio of one space per 50 vehicle spaces.
b.
Location. Long-term bicycle parking must be located on the same lot as the use it serves. In parking garages, long-term bicycle parking must be located near an entrance to the facility.
c.
Security. Long-term bicycle parking must be in:
1.
An enclosed bicycle locker;
2.
A fenced, covered, locked or guarded bicycle storage area; or
3.
A rack or stand inside a building that is within view of an attendant or security guard or visible from employee work areas.
d.
Size and accessibility. Each bicycle parking space shall be a minimum of two feet in width and six feet in length and shall be accessible without moving another bicycle. Two feet of clearance shall be provided between bicycle parking spaces and adjacent walls, poles, landscaping, street furniture, drive aisles, and pedestrian ways and at least five feet from vehicle parking spaces.
(a)
Loading spaces required. Off street loading facilities shall be provided with all commercial and industrial development.
(b)
Location. No loading facilities for vehicles over two-ton capacity shall be closer than 50 feet to any property in a residential district unless completely enclosed by building walls, or a uniformly solid fence or wall, or any combination thereof, not less than six feet in height.
(c)
Maneuvering areas. Truck-maneuvering areas shall not encroach into required parking areas, travel ways, or street rights-of-way. This requirement may be modified if the Zoning Administrator finds that sufficient space is provided so that truck-maneuvering areas will not interfere with traffic and pedestrian circulation.
(d)
Surfacing. The loading area, aisles, and access drives shall be surfaced with asphaltic concrete of minimum thickness of two inches on six inches of Class II aggregate rock base.
Parking areas shall be designed and developed consistent with the following standards:
(1)
Parking areas outside the valley growth boundary.
a.
Parking associated with a single family residence, or caretaker unit. Parking spaces shall be located outside of any required setback and shall at a minimum be graded and improved with gravel.
b.
Parking associated with an accessory dwelling unit. Off-street parking for accessory dwelling units may be a tandem space in a driveway or off-street within setback areas provided in locations approved by the County. Tandem parking and the location of off-street parking within setback areas shall be approved by the County unless specific findings can be and are made that parking in setback areas or tandem parking is not feasible based on specific site or regional topographical or fire and life safety conditions.
c.
Projects that require ten or more parking spaces. Parking areas located outside the valley growth boundary that require ten or more parking spaces may request as part of project approval a reduction in the number of spaces that need to be paved and designed per the requirements listed in Section 11.25.100(2). The request shall be submitted with the initial project application and shall clearly identify the number of unpaved spaces being requested along with any other requested deviations to the standards listed in Section 11.25.100(2). All unpaved spaces shall meet the following standards:
1.
Surfacing. Must be graded and improved with gravel.
2.
Dust control. All unpaved parking areas must have an active dust control program.
3.
Parking space dimensions. The minimum dimension for a parking space is nine feet by 18 feet.
(2)
Other parking areas. All parking areas not addressed by Section 11.25.100(1) shall be designed and developed consistent with the following standards.
a.
Surfacing. Concrete or asphaltic surfacing of two inch minimum thickness on a four inch Class II aggregate rock base for residential uses, on a six inch Class II aggregate rock base for nonresidential uses.
b.
Drainage and stormwater control. All parking areas shall be properly drained, consistent with the Yuba County Stormwater Quality Ordinance (Chapter 7.50, Stormwater Quality, of the County Code), Grading, Drainage and Erosion Control Ordinance (Chapter 11.23 of County Code), the requirements of the California State Water Resources Board's General Permit for Small MS4s, and subject to the approval of the Director of Public Works.
c.
Parking space dimensions.
1.
Standard parking spaces. The minimum dimension for standard parking spaces is nine feet by 18 feet.
2.
Compact parking spaces. When 20 or more parking spaces are required, up to 30 percent of the total number of required spaces may be reduced in size to 16 feet in length and eight feet in width for the accommodation of compact cars. Such compact spaces shall be clearly indicated by appropriate markings and signage. Compact spaces should be dispersed through the parking lot.
Figure 11.25.100(2)c.: Parking Space Dimensions
d.
Parking access, forward entry. Parking areas of four or more spaces shall be provided with suitable maneuvering room so that all vehicles therein may enter an abutting street in a forward direction.
e.
Tandem parking. Tandem parking may be permitted to satisfy the off-street parking requirement for a residential unit in accordance with the following:
1.
Parking spaces for the primary residence shall be located outside any required setback area.
2.
No more than two vehicles shall be placed one behind the other.
3.
Both spaces shall be assigned to a single dwelling unit.
f.
On-site circulation, safety, and pedestrian access. Parking areas for commercial and mixed-use developments that are 80 feet or more in depth and/or include 50 or more parking spaces must have distinct and dedicated pedestrian access from the commercial use to parking areas and public sidewalks, according to the building code and following standards:
1.
Connection to public sidewalk. An on-site walkway shall connect the main building entry to a public sidewalk on each street frontage. Such walkway shall be the shortest practical distance between the main building entry and sidewalk, generally no more than 125 percent of the straight-line distance unless grade controlled.
2.
Materials and width. Walkways shall provide at least four feet of unobstructed width and be hard-surfaced with an accessible material.
3.
Identification. Pedestrian walkways shall be clearly differentiated from driveways, parking aisles, and parking and loading spaces through the use of elevation changes, a different paving material, truncated domes, or similar method.
4.
Separation. Where a pedestrian walkway is parallel and adjacent to an auto travel lane, it must be raised and separated from the auto travel lane by a raised curb, bollards, truncated dome, or other physical barrier.
g.
Parking lot striping. Parking stalls shall be clearly outlined with striping, and all aisles, approach lanes, and turning areas shall be clearly marked with directional arrows and lines as necessary to provide for safe traffic movement.
h.
Wheel stops. Concrete bumper guards or wheel stops shall be provided. A six-inch high concrete curb surrounding a landscape area at least six feet wide may be used as a wheel stop, provided that the overhang will not damage or interfere with plant growth or its irrigation. A concrete sidewalk may be used as a wheel stop if the overhang will not reduce the minimum required walkway width.
i.
Perimeter curbing. A six-inch wide and six-inch high concrete curb shall be provided along the outer edge of the parking facility pavement, except where said pavement abuts a fence or wall. Curbs separating landscaped areas from parking areas shall be designed to allow stormwater runoff to pass through where feasible.
Figure 11.25.100(2)i.: Parking Lot Perimeter Curbing
j.
Lighting. Public parking areas shall be provided with a minimum of one-half foot-candle and a maximum of 3.0 foot-candles of light over of the parking surface during the hours of use from one-half hour before dusk until one-half hour after dawn.
1.
Lighting design shall be coordinated with the landscape plan to ensure that vegetation growth will not substantially impair the intended illumination.
2.
Parking lot lighting shall, to the maximum extent feasible, be designed and installed so that light and glare is not directed onto residential use areas or adjacent public rights-of-way, consistent with Chapter 11.26, Performance Standards.
k.
Separation from on-site buildings. Parking areas must be separated from the front walls of on-site buildings by walkways a minimum of six feet in width. These requirements do not apply to parking areas containing five or fewer spaces.
Figure 11.25.100(2)k.: Parking Lot Design—Seperation from On-Site Buildings
l.
Screening. Parking areas shall be screened from view from public streets according to the following standards:
1.
Height. Screening of parking lots from adjacent public streets shall be three feet in height.
2.
Materials. Screening may consist of one or any combination of the methods listed below:
i.
Walls. Low-profile walls consisting of brick, stone, stucco, or other quality durable material approved by the Planning Director, and including a decorative cap or top finish as well as edge detail at wall ends. Plain concrete blocks are not allowed as a screening wall material unless capped and finished with stucco or other material approved by the Planning Director.
ii.
Fences. An open fence of wrought iron or similar material combined with plant materials to form an opaque screen. This option does not include the use of chain-link or vinyl fencing.
iii.
Planting. Plant materials consisting of compact evergreen plants that form an opaque screen. Such plant materials must achieve a minimum height of two feet within 18 months after initial installation.
iv.
Berms. Berms planted with grass, ground cover, or other low-growing plant materials.
Figure 11.25.100(2)l.: Parking Lot Screening
m.
Parking lot landscaping. Landscaping of parking areas shall be provided and maintained according to the general standards of Chapter 11.24, Landscape, as well as the standards of this Subsection. Planter widths are minimums, wider widths may be necessary to accommodate larger tree or plant species. All widths listed are interior widths. Smaller widths may be approved along perimeter areas if curb stops or concrete barriers are provided that prevent vehicles from overhanging into the planter or pedestrian walkway.
1.
Landscape area required. A minimum of ten percent of any parking lot area shall be landscaped.
2.
Layout. Landscaped areas shall be well-distributed throughout the parking lot area. Parking lot landscaping may be provided in any combination of:
i.
Landscaped planting strips at least five feet wide between rows of parking stalls. Areas planted with trees shall be at least six feet wide;
ii.
Orchard planters at least six feet wide;
iii.
Landscaped planting strips at least six feet wide (between parking areas and adjacent buildings or internal pedestrian walkways);
iv.
Landscaped islands located between parking stalls or at the ends of rows of parking stalls; and
v.
On-site landscaping at the parking lot perimeter that is at least five feet in width.
3.
Required landscaped islands. A landscaped island or orchard planter at least six feet in all interior dimensions and containing at least one tree from the Approved Tree List shall be provided at each end of each interior row of parking stalls and staggered throughout the parking field to obtain the minimum shade requirement. Unless an alternative plan is approved for parking areas utilizing solar/shade structures.
4.
Landscaped buffer for open parking adjacent to right-of-way. A landscaped area at least ten feet wide shall be provided between any surface parking area and any property line adjacent to a public street unless a lesser dimension is approved through the Design Review permit where due to site constraints or consistency with community character a smaller buffer is approved. Within the landscaped area, there shall be at least one tree planted from the Approved Tree List for each 40 feet of street frontage.
5.
Shading. Shade trees or shade structures shall provide a minimum 50 percent shading (at maturity, where trees are used).
Figure 11.25.100(2)m.5.: Parking Lot Landscaping
6.
Protection of vegetation.
i.
Clearance from vehicles. All required landscaped areas shall be designed so that plant materials, at maturity, are protected from vehicle damage by providing a minimum two-foot clearance of low-growing plants where a vehicle overhang is permitted, or by wheel stops set a minimum of two feet from the back of the curb.
ii.
Planters. All required parking lot landscaping shall be within planters bounded by a concrete curb at least six inches wide and six inches high. Curbs separating landscaped areas from parking areas shall be designed to allow stormwater runoff to pass through if feasible.
Figure 11.25.100(2)m.6.: Protection of Vegetation
7.
Visibility and clearance. Landscaping in planters at the end of parking aisles may not obstruct drivers' vision of vehicular and pedestrian cross-traffic. Mature trees shall have a foliage clearance maintained at eight feet from the surface of the parking area. Other plant materials located in the interior of a parking lot should not exceed 30 inches in height.
(3)
Alternative parking area designs.
a.
S/E district. In the S/E District, the Planning Commission may approve parking facility plans that allow for alternative standards for off-street parking facilities due to the intermittent nature of the events and variations in attendance. Proposals which include standards less than the required stall size and driving aisle shall include provisions for management of the facility by parking ushers. Proposals for alternative surfacing shall be based upon estimates for frequency of events and estimated average attendance per event and shall at the minimum provide for a low-traffic paving system for the estimated average number of vehicles. The remainder of the parking area shall, at the minimum, be seeded with a hardy, drought-resistant grass to provide a dust-controlling surface and shall be maintained to prevent ignition from parked vehicles.
b.
Other districts. Where an applicant can demonstrate to the satisfaction of the Zoning Administrator that variations in the dimensions otherwise required by this Section are warranted in order to achieve environmental design objectives, an alternative parking area design may be approved.
(4)
Maintenance. Parking lots, including landscaped areas, driveways, and loading areas, shall be maintained free of refuse, debris, or other accumulated matter and shall be kept in good repair at all times.
Temporary, overflow parking may be utilized for special events and other temporary uses that are allowed by this Code. All temporary parking shall meet local fire department requirements Where a temporary use permit or other permit is required, the applicant shall demonstrate to the decision-making authority the ability to provide safe access and parking, including access road clearance for emergency vehicles, a dust control program, and the provision of attendants, if necessary to monitor proper parking and access road clearance for emergency vehicles.
Recreational vehicles, including travel trailers and boats, may not be parked or stored in a required front yard or street side setback area (excluding driveways). Recreational vehicles may be parked or stored in a driveway, side yard, or rear yard. Other regulations pertaining to recreational vehicles include:
(1)
Parking within the public right-of-way shall only be for the purpose of loading or unloading, not to exceed 72 hours before or after a trip. The recreational vehicle may be used for purposes of accommodating visitors, not to exceed one week within any consecutive six-month period and shall be fully self-contained and shall not be parked within a public right-of-way or have any power cords or other items transversing the public right-of-way.
The purposes of this Chapter are to:
(1)
Establish permissible limits and permit objective measurement of nuisances, hazards, and objectionable conditions;
(2)
Ensure that all uses will provide necessary control measures to protect the community from nuisances, hazards, and objectionable conditions;
(3)
Protect industry from arbitrary exclusion from areas of the County; and
(4)
Protect and sustain the natural environment by promoting conservation of energy and natural resources, improving waste stream management, and reducing emission of greenhouse gases.
The minimum requirements in this Section apply to all land uses in all zoning districts, unless otherwise specified.
Land or buildings shall not be used or occupied in a manner creating any dangerous, injurious, or noxious fire, explosive or other hazards that would adversely affect the surrounding area.
Measurements necessary for determining compliance with the standards of this Chapter shall be taken at the property line of the establishment or use that is the source of a potentially objectionable condition, hazard, or nuisance unless another location is specific in this Chapter or within the General Plan. Property owners shall be responsible for demonstrating compliance with standards.
(a)
Noise limits. No use or activity shall create ambient noise levels that exceed the standards established in the Public Health and Safety Element of the Yuba County General Plan.
(b)
Acoustic study. The Planning Director may require an acoustic study for any proposed project that could cause any of the following:
(1)
Locate new residential uses within the 55 Community Noise Equivalent (CNEL) impact area of the Yuba County Airport;
(2)
Locate new residential uses within the 55 CNEL impact area of Beale Air Force Base (excludes housing located on Base);
(3)
Cause noise levels to exceed the limits in Chapter 8.20, Noise Regulations, of the Yuba County Code and Yuba County General Plan;
(4)
Create a noise exposure that would require an acoustic study and noise attenuation measures listed in the Public Health and Safety Element of the General Plan; or
(5)
Cause the day-night equivalent (LDN) noise level at noise-sensitive uses to increase five dB or more.
(c)
Noise attenuation measures. Any project subject to the acoustic study requirements of Subsection (b) may be required as a condition of approval to incorporate noise attenuation measures deemed necessary to ensure that noise standards are not exceeded.
(1)
New noise-sensitive uses (e.g. schools, hospitals, churches, and residences) shall incorporate noise attenuation measures to achieve and maintain an interior noise level of 45 LDN.
(2)
Noise attenuation measures identified in an acoustic study shall be incorporated into the project to reduce noise impacts to satisfactory levels.
(3)
Emphasis shall be placed upon site planning and project design measures. The use of noise barriers shall be considered only after all feasible design-related noise measures have been incorporated into the project.
No vibration shall be produced that is transmitted through the ground and is discernible without the aid of instruments by a reasonable person at the property lines of the site. Vibrations from temporary construction, demolition, and vehicles that enter and leave the subject parcel (e.g., construction equipment, trains, trucks, etc.) are exempt from this standard.
(1)
New developments that propose vibration sensitive uses within 100 feet of a railroad or industrial facility shall analyze and mitigate potential vibration impacts to the greatest extent feasible.
(2)
New developments that would generate substantial long-term vibration shall provide analysis and mitigation to achieve velocity levels of less than 78 vibration decibels as experienced at habitable structures of vibration-sensitive land uses.
Activities, processes, and uses shall be operated in compliance with the following provisions:
(1)
Mechanical or chemical processes. Light or glare from mechanical or chemical processes, high-temperature processes such as combustion or welding, or from reflective materials on buildings used or stored on a site, shall be shielded or modified to prevent emission of adverse light or glare onto other properties.
(2)
Lighting. Lights shall be placed to deflect light away from adjacent properties and public streets, and to prevent adverse interference with the normal operation or enjoyment of surrounding properties. Direct or sky-reflected glare from floodlights shall not be directed into any other property or street. Except for public street lights, no light or combination of lights, or activity shall cast light on a public street exceeding one foot-candle as measured from the centerline of the street. No light, combination of lights, or activity shall cast light onto a residentially zoned property, or any property containing residential uses, exceeding one-half foot-candle.
(3)
Glare. No use shall be operated such that significant, direct glare, incidental to the operation of the use is visible beyond the boundaries of the lot where the use is located.
No use, process, or activity shall produce objectionable odors that are perceptible without instruments by a reasonable person at the property lines of a site. Odors from permitted agricultural operations, temporary construction, demolition, and vehicles that enter and leave the subject parcel (e.g., construction equipment, trains, trucks, etc.) are exempt from this standard.
Uses, activities, and processes shall not produce any emissions of heat or humidity that cause distress, physical discomfort, or injury to a reasonable person, or interfere with ability to perform work tasks or conduct other customary activities. In no case shall heat emitted by a use cause a temperature increase in excess of five degrees Fahrenheit on another property.
Uses, activities, and processes shall not operate in a manner that emits excessive dust, fumes, smoke, or particulate matter. Sources of air pollution shall comply with rules identified by the Environmental Protection Agency (Code of Federal Regulations, Title 40), the California Air Resources Board, and the Feather River Air Quality Management District.
(a)
Discharges to water or sewers. Liquids and solids of any kind shall not be discharged, whether directly or indirectly, into a public or private body of water, sewage system, storm water system, watercourse, or into the ground, except in compliance with applicable regulations of the California Regional Water Quality Control Board (California Administrative Code, Title 23, Chapter 3 and California Water Code, Division).
(b)
Solid wastes. Solid wastes shall be handled and stored so as to prevent nuisances, health, safety and fire hazards, and to facilitate recycling. There shall be no accumulation outdoors of solid wastes conducive to the breeding of rodents or insects, unless stored in closed containers.
All activities, processes and uses involving the use of, or storage of, flammable and explosive materials shall be provided with adequate safety devices against the hazard of fire and explosion. Fire fighting and fire suppression equipment and devices standard in industry shall be approved by local fire district. With the exception of waste allowed by the fire authority and Air Quality Management District, all incineration is prohibited with the exception of those substances such as, but not limited to, chemicals, insecticides, hospital materials and waste products, required by law to be disposed of by burning, and those instances wherein the fire authority deems it a practical necessity.
The use, handling, storage and transportation of hazardous and extremely hazardous materials shall comply with the provisions of the California Hazardous Materials Regulations and the California Fire and Building Code, as well as the laws and regulations of the California Department of Toxic Substances Control and the County Environmental Health Agency. Activities, processes, and uses shall not generate or emit any fissionable or radioactive materials into the atmosphere, a sewage system or onto the ground.
No use, activity or process shall cause electromagnetic interference with normal radio and television reception in any Residential district, or with the function of other electronic equipment beyond the lot line of the site in which it is situated. All uses, activities and processes shall comply with applicable Federal Communications Commission regulations.
No radiation of any kind shall be emitted that is dangerous to humans.
The purpose of this Chapter is to establish regulations for the design, construction, location, and maintenance of signs that balance the need of residents, businesses, visitors, and institutions for adequate identification, communication, and advertising with the objectives of protecting public health, safety, and general welfare and promoting a well-maintained and visually attractive community, consistent with state and federal law. Specifically, these regulations are intended to:
(1)
Promote and aid in the identification, location, and advertisement of goods and services.
(2)
Enhance the County's ability to attract sources of economic development and growth.
(3)
Promote an attractive, positive image and protect the County from visual clutter and blight.
(4)
Protect property values and enhance community appearance by ensuring that signs are compatible with the character of surrounding architecture, districts, and neighborhoods.
(5)
Reduce or eliminate traffic and safety hazards through proper location and design.
(6)
Ensure that the constitutionally guaranteed right of free speech is protected.
(7)
Provide for eventual elimination of preexisting non-conforming signs on a fair and equitable basis.
The provisions set forth in this Chapter apply in all zoning districts of the County, except where expressly stated otherwise. No sign shall be erected or maintained anywhere in the County except in conformity with this Chapter.
The following signs or modifications to signs do not require a Zoning Clearance or other review by the Planning Department, nor shall the area of such signs be included in the maximum allowable sign area measurement for the purposes of this Chapter. These exceptions shall not be construed as relieving the owner of the sign from the responsibility of the safe erection and safe and attractive maintenance of the sign, of obtaining a building permit where applicable, or of compliance with applicable provisions of this Chapter or any other requirement of this Code.
(1)
Address signs. Required address identification signs that are in conformance with the Building Code.
(2)
Barber poles. Barber poles not exceeding six feet in height, located wholly on commercial private property, and bearing no lettering.
(3)
Building directory sign. A sign on which the names and locations of occupants or the use of a building is provided, oriented to pedestrian traffic and not exceeding six square feet in area.
(4)
Bulletin boards. One bulletin board not exceeding 20 square feet in area or five feet above existing grade, serving a public, or semi-public agency, community facility or institution, if located on the premises of the institution.
(5)
Change-of-business signs. A temporary attachment or covering of wood, plastic, or canvas over a permanent sign indicating a change of ownership or activity for a nonresidential use may be displayed for no longer than 30 days following the change of ownership or activity for which the sign is intended. The sign shall be no larger than the previously permitted permanent sign.
(6)
Commemorative signs. Commemorative plaques, memorial signs or tablets, or signs indicating names of buildings and dates of building erection, either attached to or cut into the surfaces of buildings, provided that no such sign exceeds three square feet in area.
(7)
Construction signs. A temporary construction sign may be erected on a construction site for the duration of construction activities, provided that it is immediately removed after issuance of a certificate of occupancy or certificate of completion for the project, or abandonment of work. A temporary construction sign may not exceed 32 square feet in area and eight feet above finished grade in non-residential districts or eight square feet in area and five feet above finished grade in residential districts.
(8)
Decorative holiday displays. Non-commercial decorative holiday displays, provided that such displays are removed within 45 days of their installation.
(9)
Election signs. Election signs that meet the requirements as set forth by the Elections Office and Community Development and Services Agency.
(10)
Flags. Official flags, emblems and historical markers. This exemption does not apply to flags or pennants bearing corporate emblems, logos or commercial copy.
(11)
Home occupation signs. Permitted home occupations are allowed one wall sign not to exceed four square feet in area and six feet in height.
(12)
Informational signs. Non-commercial informational signs not exceeding two square feet in area erected for the safety and convenience of the public, such as signs identifying rest rooms or telephones, "no parking" and "no trespassing" signs.
(13)
Equipment signs. Signs not more than four square feet in area and incorporated into machinery or equipment by a manufacturer, distributor or vendor and identifying or advertising only the product or service dispensed by the machine or equipment, such as signs customarily fixed to automated teller machines (ATMs), gasoline pumps, and vending machines.
(14)
Interior signs. Signs that are located in interior areas of a building or site and are not visible from public streets or adjacent properties. For the purpose of this regulation, "visible" means legible to a person of ordinary eyesight (with vision adequate to pass a state driver's license exam) standing at ground level at a location on the public right-of-way or other private property.
(15)
Kiosk and mobile vendor signs. Signs fixed to mobile vending carts that identify or advertise the name, product, or service provided by the vendor. Each mobile vending cart is limited to a maximum sign area of eight square feet.
(16)
Newspaper stands. Signs that are part of newspaper stands, provided the sign area does not exceed six square feet.
(17)
Official government signs. Official notices issued by a court, public body or office; official notices posted by a utility or other quasi-public agency; signs erected by a governmental body to direct or regulate pedestrian or vehicular traffic; public hearing or meeting notices; seismic warning signs, or other signs required or authorized by law.
(18)
Public service and civic identity signs. Signs erected on public or private property to promote County-sponsored activities or other community events, as authorized by the Community Development and Services Agency. Signs may include district identification banners; temporary signs or when authorized by the Department of Public Works banners erected above streets or attached to lamp posts or utility poles.
(19)
Real estate signs.
a.
On-site real estate signs. On-premises signs conveying information about the sale, rental, or lease of the lot, premises, dwelling, or structure on which they are located, provided that they comply with the following standards:
1.
No more than one real estate sign for lots in residential districts, or one real estate sign per public street frontage per lot in non-residential districts, is displayed at any one time;
2.
The sign or signs do not exceed an aggregate area of six square feet in residential districts or 32 square feet in non-residential districts;
3.
Wall signs shall not be higher than seven feet above grade in residential districts or fifteen feet in non-residential districts. Freestanding signs shall not exceed five feet in height in residential districts or ten feet in height in non-residential districts.
4.
The sign or signs are not illuminated;
5.
The sign or signs shall not be placed on roof tops or above parapet or eave lines;
6.
The sign or signs are removed within seven days after the sale, lease, or rental of the property has been completed; and
7.
Real estate signs are not permitted in the public right-of-way, and must not obstruct pedestrian walkways or motorists' line of sight, including line-of-sight for those exiting driveways.
b.
Directional signs for open houses. Up to three off-site signs directing the public to "open house" events for the viewing of lots, premises, dwellings or structures that are for sale, lease, or rent, are permitted on public or private land, provided that they comply with the following standards:
1.
No sign or signs shall exceed four square feet in area, or three feet in height from finished grade.
2.
The sign or signs may not be placed more than 12 hours before the start or remain more than 12 hours after the conclusion of the open house event.
3.
Signs shall not interfere with public facilities or roads.
(20)
Small signs. All businesses and residences may display up to two signs, each no larger than six square feet in area and no higher than five feet, attached to a freestanding sign structure, a window, or a building wall. This exemption includes, but is not limited to, freedom of speech signs and political signs.
(21)
Window signs. Window signs on a building in non-residential districts subject to the following provisions:
a.
Window signs shall not exceed 20 percent of the area of window and transparent door frontage on any building facade.
b.
Window signs may be located on the ground floor or second floor of a building.
c.
Any sign either hung within two feet of a window or attached to a display located within two feet of a window shall be considered a window sign.
The following types of signs, materials, designs, messages, and locations are prohibited:
(1)
Animated and moving signs. Animated, flashing, blinking, reflecting, revolving, or other similar signs or signs with visibly moving or rotating parts or visible mechanical movement of any kind, either adjacent to or as an integral part of the display, unless expressly allowed by this Chapter.
(2)
Inflatable signs. Signage or displays that are inflatable are prohibited regardless of location.
(3)
Portable signs. Signs not permanently attached to the ground or other permanent structure or signs designed to be transported including, but not limited to, signs designed to be transported by means of wheels; signs made as A-frames or T-frames; menu and sandwich board signs except where expressly provided for in this Chapter (See "Temporary Signs" in Section 11.27.120). Signs attached to or painted on vehicles parked and visible from the public right-of-way, unless said vehicle is used in the normal day-to-day operations of the business identified on the sign.
(4)
Roof signs.
a.
Attached signs that extend above the top of roof or parapet (whichever is higher) of a building with a flat roof.
b.
Attached signs that extend above the deck line of a mansard roof.
c.
Signs on rooftop structures such as penthouse walls or mechanical enclosures.
d.
However, signs that do not extend above the deck line of a mansard roof, and that do not extend above the parapet (or the roofline if no parapet is present) of a flat roof are permitted subject to the standards of Section 11.27.080(2), Wall Signs.
Figure 11.27.040(4): Prohibited Signs—Roof Signs
(5)
Signs creating traffic hazards.
a.
Signs located in such a manner as to constitute a traffic hazard or obstruct the view of traffic, any authorized traffic sign or signal device, or signs that may be confused with any authorized traffic sign, signal, or device; or which makes use of the words "stop," "look," "danger," or any other word, phrase, symbol, or character that interferes with, misleads, or confuses vehicular drivers in their use of roads.
b.
Signs within five feet of a fire hydrant, street sign, or traffic signal if such placement could create a safety hazard.
(6)
Signs that produce noise or emissions. Signs that emit visible smoke, vapor, particles, or odor; or signs that produce noise or sounds that can be heard at the property line, excluding voice units at menu boards.
(7)
Signs in the right-of-way. No signs shall be erected in the public right-of-way, with the exception of legal notices that are required by law to be placed upon public property to provide notice to the public; signs erected by a governmental body to promote public safety or direct or regulate pedestrian or vehicular traffic; public holiday lights and displays; district identification signs; civic identity signs; signs and banners posted by the County above streets or attached to lamp posts or utility poles that promote County-sponsored events.
(a)
Zoning clearance. All non-exempt signs require zoning clearance. When signs also require a building permit (i.e. free standing or signs with electrical), the Planning Department will review applications for building permits for signs and determine if the proposed signs are consistent with the requirements contained in this Chapter. Where a building permit is required a separate zoning clearance is not required.
(b)
Building permit required. No person shall erect, alter, repair, or relocate any sign without first obtaining any required building permit for such work from the Building Official. No permit shall be issued until zoning clearance has been given and the Building Department determines that such work is in accordance with the building or electrical codes of the County. Except as otherwise provided, permits required by this Chapter will be issued pursuant to the same terms and according to the same fee schedule as all other building permits.
(c)
Planned sign permit program. A planned sign permit program (PSPP) is required for multi-tenant projects and for signs that do not conform with all the standards of this Chapter, as specified in Section 11.27.130, Planned Sign Permit Programs.
(a)
Calculation of sign area. The area of an individual sign shall be calculated as follows:
(1)
Single-faced signs. Sign area shall include the entire area within a single continuous perimeter composed of squares or rectangles that enclose the extreme limits of all sign elements, including, but not limited to, sign structures or borders, individual channel letters, written copy, logos, symbols, illustrations, and color. Supporting structures such as sign bases and columns are not included in sign area provided that they contain no lettering or graphics except for addresses or required tags. The calculation of sign area for various types of single-faced signs is illustrated in Figure 11.27.060(a)(1).
Figure 11.27.060(a)(1): Calculation of Single-Faced Sign Area
(2)
Double-faced signs. Where two faces of a double-faced sign are located two feet or less from one another at all points, or located at an interior angle of 45 degrees or less from one another, the sign area shall be computed as the area of one face. Where the two faces are not equal in size, the larger sign face shall be used. Where two faces of a double-faced sign are located more than two feet or 45 degrees from one another, both sign faces shall be counted toward sign area. See Figure 11.27.060(a)(2).
Figure 11.27.060(a)(2): Calculation of Double-Faced Sign Area
(b)
Calculation of lot frontage. If a lot fronts on two streets, both frontages may be used for calculating the allowable sign area. On lots with three or more frontages on a public street, the length of only two contiguous sides shall be added together to determine allowable sign area.
Figure 11.27.060(b): Calculation of Lot Frontage
(c)
Measuring sign height. The height of a sign is the vertical distance measured from the ground level directly beneath the sign to the highest point at the top of the sign, including any structural or architectural components of the sign. The ground level shall be either the natural grade or finished grade, whichever is lowest.
(1)
Height of freestanding signs. The height of freestanding signs shall be measured as the vertical distance from grade at the edge of the right-of-way along which a sign is placed to the highest point of the sign, including any structural or architectural components of the sign. When the grade at the edge of the right-of-way is higher than the site on which the sign is placed, that portion of the sign below the grade at the edge of the right-of-way shall not be included in determining the sign's overall height. Signs oriented towards a freeway shall be measured from the project site grade or pad, whichever is lower.
(d)
Measuring sign clearance. Sign clearance shall be measured as the smallest vertical distance between finished grade and the lowest point of the sign, including any framework or other embellishments.
Figure 11.27.060(d): Measuring Sign Height and Clearance
(e)
Building frontage. Building frontage is the building facade that directly abuts a public street, private street, parking lot driveway or parking spaces in which main customer access is provided to the business. A building's frontage is considered continuous if projections or recesses in a building wall do not exceed ten feet in any direction. For buildings with two or more frontages, the length of the wall and allowable sign area shall be calculated separately for each building frontage.
This Section establishes general physical standards and requirements that apply to all signs types and districts.
(1)
Code compliance. Signs erected, installed, located or maintained in the County must comply with all applicable structural provisions of the most recently adopted versions of the Uniform Sign Code, California Building Code, and California Electrical Code adopted by the County.
(2)
Highway signs—Compliance with state and federal standards. No sign shall be allowed to conflict with state or federal standards for regulation of signs along State or interstate highway.
(3)
Encroachment into County right-of-way, public street, or sidewalk. Signs shall not be placed or project over, the County right-of-way, public street, or sidewalk unless an encroachment permit has been approved by the Public Works Department.
(4)
Intersection and driveway visibility. Signs shall not obstruct the visibility area specified in Section 11.19.130, Visibility at Intersections and Driveways.
(5)
Materials. Paper, cardboard, or other material subject to rapid deterioration shall be limited to signs displayed for no more than 60 days. Fabric signs shall be restricted to district identification and civic identity banners, awning signs, and temporary signs permitted pursuant to Section 11.27.120, Temporary Signs.
(6)
Weathered or damaged. The County reserves the right to remove any weathered or damaged special event and/or temporary signs.
(7)
Illumination. The illumination of signs, from either an internal or external source, shall be designed to avoid negative impacts on surrounding rights-of-way and properties. The following standards apply to all illuminated signs:
a.
Sign lighting shall not be of an intensity or brightness, or generate glare, that will create a nuisance for residential buildings in a direct line of sight to the sign;
b.
External light sources shall be directed, shielded, and filtered to limit direct illumination of any object other than the sign.
c.
All sign illumination shall be non-pulsating, continuous, and stationary.
This Section establishes locational and other general standards for specific sign types that apply to all districts where such signs are permitted. Additional standards applicable to these signs in specific zoning districts are located in Sections 11.27.090, 11.27.100, and 11.27.110.
(1)
Freestanding signs. Freestanding signs, including pole and monument signs, are allowed, subject to the specific zoning district and use standards and the following standards:
a.
Freestanding signs shall not be erected or maintained closer than three feet to any building.
b.
Freestanding signs shall be located so as to maintain a setback, measured from that part of the sign that is closest to the nearest property line of the parcel or lot on which it is placed, equal to at least one-half the height of the sign.
c.
Freestanding signs shall include a base treatment that is consistent with the colors and materials of the buildings on the project site. Signs over ten feet in height shall include at least a five foot tall by two foot wide base.
d.
The colors and materials of the sign(s) shall be compatible with the colors and materials of the building(s).
Figure 11.27.080(1): Freestanding Signs
(2)
Wall signs. Wall signs include any sign attached to, erected against or painted upon the wall of a building or structure. Wall signs are allowed, subject to the specific zoning district and use standards and the following standards:
a.
Wall signs may be:
1.
Attached flat against or pinned away from a building wall, but shall not extend or protrude more than one foot from the wall; or
2.
Attached to the facade of a building or on a sloping roof (mansard roof), but shall not extend above the upper edge of the facade or the sloping roof.
b.
Wall signs shall not be placed higher than the second story of a building.
c.
Wall signs shall not cover or interrupt major architectural features, including such features as doors, windows, or tile embellishments.
d.
Wall signs shall not extend higher than the building wall upon which they are attached.
e.
Signs placed on window spandrels, fascias, or sloping mansard roofs shall be centered vertically on such spandrel, fascia, or roof. The height of a sign placed on a spandrel, fascia, or roof shall not exceed two-thirds of the height of the feature to which the sign is attached.
Figure 11.27.080(2): Wall Signs
(3)
Projecting signs. Signs under canopies or covers in conjunction with pedestrian walkways, or signs projecting from the building wall are allowed, subject to the specific zoning district standards and use and the following standards:
a.
Placement. No portion of a projecting sign shall extend above the highest point of a building wall or parapet. The highest point of any projecting sign shall not exceed 15 feet above grade.
b.
Minimum clearance. The lowest point of a projecting sign must be at least eight feet above the surface of any public sidewalk or street.
c.
Encroachment. All signs that project into the public right-of-way shall be designed and located so as to cause no harm to street trees. Signs projecting into the public right-of-way are subject to an encroachment permit.
d.
Maximum area. No projecting sign shall exceed 16 square feet in area or eight square feet if hung under a canopy or awning.
Figure 11.27.080(3): Projecting Signs
(4)
Awning signs. Signs painted on awnings, canopies, arcades, or similar attachments or structures are allowed. Awning signs are subject to the specific zoning district and use standards and the following standard:
a.
Maximum surface area. No awning sign shall exceed ten square feet or 25 percent of the surface area of the awning, whichever is less.
b.
Placement. No awning or awning sign shall extend above 25 feet or the top of the second floor of a building, whichever is less.
c.
Minimum clearance. Awnings and canopies shall be located a minimum of eight feet above grade, measured from the lowest structural element of the awning or canopy.
d.
Illumination. Awning and canopy signs shall be unlighted.
Figure 11.27.080(4): Awning Signs
(5)
Menu/order board signs. Outdoor menu/order board signs are subject to the following standards:
a.
Uses allowed with. Outdoor menu/order board signs are allowed on the site of a permitted drive-in, walk-up, or drive-thru facility.
b.
Number. A maximum of two per business with a drive-thru facility and one per business with a walk-up window.
c.
Location.
1.
Menu/order board signs shall be located adjacent to the drive-thru aisle or walk-up window; and
2.
The signs shall not be located so as to impair the vision of the driver of a vehicle traveling either into, out of, or through the drive-thru aisle.
d.
Area. The area of each menu/order board sign shall not exceed 32 square feet.
e.
Height. The height of a menu/order board sign, including the pole or base, shall not exceed six feet from grade.
(6)
Subdivision signs. Signs for residential subdivisions include temporary off-premises advertising signs as well as permanent on-premises signs that serve as community identification.
a.
Off-premises subdivision signs. Off-premises signs that advertise a residential subdivision shall comply with the following standards:
1.
Number. No more than two signs are allowed per intersection.
2.
Location.
i.
Freestanding signs shall maintain a setback, measured from the part of the sign that is closest to the nearest property line of the parcel or lot on which it is placed, equal to at least one-half the height of the sign;
ii.
Off-premises subdivision signs shall be located only on property with written permission from property owner;
iii.
Off-premises subdivision signs shall be located within 500 feet of an intersection (measured at centerline); and
iv.
Signs at other locations may be approved as part of an area plan or Planned Sign Permit Program.
3.
Area. The area of any off-premises subdivision sign shall not exceed 64 square feet each.
4.
Height and width. Off-premises subdivision signs shall not exceed:
i.
Fifteen feet in height; and
ii.
Sixteen feet in width.
5.
Design. Off-site subdivision signs shall be freestanding and shall not contain more than two advertising sides. They shall conform to any plan area sign guidelines for the area or, if there are no applicable guidelines, they shall conform to the following design standards:
i.
Copy relating to specific subdivisions is limited to the subdivision name, a logo, and a directional arrow or directions to the subdivision; and
ii.
Any deviation from this design or the design established in the specific plan sign guidelines shall be reviewed as a Planned Sign Permit Program.
6.
Erection and removal.
i.
No off-site subdivision sign shall be erected until at least one subdivision is advertised on the sign;
ii.
A subdivision name may not be advertised on the sign before either a building permit or a public report by the Department of Real Estate has been issued for the subdivision;
iii.
A subdivision name shall be removed from the sign within 30 days if no model homes or lots are available for viewing or sale; and
iv.
The off-site subdivision signs shall be removed if no subdivision name has been advertised on it for a period of 90 days.
7.
Other. Other types of subdivision advertising signage, such as ladder signs and model home complexes, may be approved as part of a plan area or Planned Sign Permit Program.
Figure 11.27.080(6)a.: Off-Premises Subdivision Signs
(7)
On-site subdivision signs. On-site subdivision signs shall comply with the following standards:
a.
Number. No more than a total of four signs are permitted at each subdivision entrance. Within this total may be included:
1.
No more than two freestanding signs; or
2.
No more than two walls signs; and
3.
No more than two logo signs.
b.
Location.
1.
Freestanding subdivision sign(s) shall:
i.
Be located at the entrance to the subdivision to which they relate on either one or both sides of the subdivision entrance; and
ii.
Maintain a setback, measured from the part of the sign that is closest to the nearest property line of the parcel or lot on which it is placed, equal to at least one-half the height of the sign.
2.
No on-site subdivision signs shall be permitted for an entrance from another subdivision.
3.
Wall signs may be mounted on an entry wall or sound wall on one or both sides of the entrance road to the subdivision.
4.
Logo signs may be mounted on an entry wall or sound wall (including pilasters) on one or both sides of the entrance road to the subdivision.
c.
Area.
1.
The maximum area of each freestanding sign shall be 32 square feet.
2.
The maximum area of each wall sign shall be 32 square feet.
3.
The maximum area of each logo sign shall be four square feet.
d.
Height. The maximum height of an on-premises subdivision sign shall be six feet.
e.
Design. On-site subdivision signs shall be used as community identification and shall not have the community builder's name or logo located on any signs.
The following signs are allowed in agricultural districts, rural community districts, and natural resource districts.
(1)
Freestanding signs.
a.
Number.
1.
Individual uses. For purposes of this Section, individual uses are sites with three or fewer tenant spaces or buildings on a single parcel. One freestanding sign is permitted for each street frontage of the lot. For lots with over 700 lineal feet of frontage and more than one driveway entrance a second freestanding sign shall be permitted. The total number of freestanding signs for an individual use shall not exceed two.
2.
Rural commercial centers. For purposes of this Section, rural commercial centers are sites designated as Rural Commercial that have four or more tenant spaces or buildings on a single parcel or adjacent parcels with shared parking and access. One freestanding sign is permitted for each street frontage of the lot. One additional freestanding sign is permitted for every 700 lineal feet of street frontage. The total number of freestanding signs for a rural commercial center shall not exceed four.
b.
Area. Each freestanding sign shall not exceed a signage area of 36 square feet for individual uses or 60 square feet for rural commercial centers.
c.
Height. Monument signs shall not exceed a height of eight feet. Properties that are directly accessed off of a state high way or a roadway with a posted speed limit of 55 miles per hour may install a pole sign not to exceed a height of 15 feet.
d.
Setbacks. Freestanding signs shall be set back at least ten feet from the road right-of-way.
(2)
Wall signs. Each tenant may have one wall sign not to exceed one and one-half square feet per lineal foot of building frontage of the tenant space, with a maximum of 40 square feet per tenant.
(3)
Subdivision signs. On-premises and off-premises subdivision signs are allowed according to the standards of Subsection 11.27.080(6), Subdivision Signs.
(4)
Illumination. With the exception of properties designated as rural commercial or public facility, signs shall not be internally illuminated.
The standards of this Section shall apply to signs in residential districts, as well as to residential uses located in any mixed-use district.
(1)
Freestanding signs and signs mounted on fences or sound walls. One freestanding sign or a sign mounted on a fence or sound wall is allowed on the site of a multi-unit residential or single room occupancy use with three or more units. The sign shall not exceed 32 square feet in area or six feet in height.
(2)
Wall signs. One wall sign not to exceed 40 square feet in area is allowed on the site of a multi-unit residential or single room occupancy use with three or more units.
(3)
Directory sign. One directory sign per primary entrance is allowed per primary entrance on the site of a multi-unit residential or single room occupancy use with three or more units.
(4)
Subdivision signs. On-premises and off-premises subdivision signs are permitted according to the standards of Subsection 11.27.080(6), Subdivision Signs.
(5)
Illumination. No sign in a residential district shall be internally illuminated. Illumination, if any, shall be indirect.
The standards of this Section apply to signs for nonresidential uses located in commercial and mixed-use, employment, and public and semi-public districts. Residential uses located within these districts shall be subject to the provisions in Section 11.27.100, Sign Standards—Residential Districts and Uses.
(1)
Freestanding signs. Freestanding signs are permitted according to the standards of Section 11.27.080, Standards for Specific Sign Types and the following:
a.
Number.
1.
Individual uses. Every individual use may erect and maintain one freestanding sign plus one additional sign if the project has more than one street frontage or is adjacent to a freeway, or has over 700 lineal feet of street frontage and more than one driveway entrance. The total number of freestanding signs for an individual use shall not exceed two.
2.
Building complexes. Developments of three or more nonresidential buildings, tenants, or uses may erect and maintain:
i.
One on-site freestanding sign per building complex;
ii.
One additional on-site freestanding sign for building complexes with more than one street frontage when an entrance to the building complex is provided, or when freeway frontage exists and the additional sign is oriented towards the freeway; and
iii.
One additional on-site freestanding sign is permitted for every 700 lineal feet of street frontage.
b.
Height.
1.
DC Districts and neighborhood service uses in residential districts: eight feet.
2.
Other nonresidential districts: Signs may not exceed a height of 20 feet.
3.
Sites that are adjacent to a freeway or state highway may increase the height of one of their permitted signs to a maximum height of 25 feet so long as the sign is oriented towards the freeway or highway.
c.
Area.
1.
DC Districts and neighborhood service uses in residential districts: 36 square feet (excluding sign base).
2.
Other Nonresidential Districts: 150 square feet (excluding sign base).
(2)
Wall signs. Wall signs are permitted according to the standards of Section 11.27.080, Standards for Specific Sign Types and the following:
a.
Number.
1.
Individual uses. Every individual use may erect and maintain up to two wall signs, provided that each sign is located on a different side of the building and faces a public entrance, street, or parking lot.
2.
Building complexes. Developments of three or more non-residential buildings, tenants, or uses may erect and maintain:
i.
Major tenants are permitted an unlimited number of wall signs;
ii.
Freestanding pad buildings with one tenant are permitted three wall signs, provided that each sign is located on a different side of the building and faces a public entrance, public street or parking lot;
iii.
Freestanding pad buildings with two or more tenants are permitted two wall signs per tenant, provided that the signs for each tenant are located on a different side of the building and face a public entrance, public street or parking lot; and
iv.
Uses that are neither major tenants nor freestanding pad buildings are permitted one wall sign; however, a use on a corner of the building is permitted two wall signs, provided that each sign is located on a different side of the building and faces a public entrance, a public street, or a parking lot.
b.
Area. The combined area of all wall signs for a building shall not exceed one and one-half square feet per lineal foot of building frontage, with a maximum of 200 square feet per use. Major tenants of a building complex with 100,000 square feet or more of floor area are permitted up to a maximum of 300 square feet of cumulative wall sign area.
c.
Length. The length of any wall sign shall not exceed 70 percent of the length of the tenant space facade or building facade to which it is attached.
(3)
Projecting signs. Every individual use in the DC and NMX districts and in building complexes with three or more non-residential buildings, tenants, or uses, may erect and maintain one projecting sign according to the standards of Section 11.27.080, Standards for Specific Sign Types.
(4)
Awning signs. Each non-residential ground-floor establishment may display up to three awning signs, with only one sign per awning in accordance with the standards of Section 11.27.080, Standards for Specific Sign Types.
(5)
On-site directional signs. Signs to direct on-site traffic circulation are permitted according to the following standards:
a.
Number.
1.
One directional sign is permitted for each one way driveway;
2.
One directional sign is permitted for each drive-through aisle;
3.
One directional sign is permitted for each service or delivery entrance; and
4.
Additional directional signs are permitted if a health and safety need is demonstrated to the satisfaction of the Planning Director.
b.
Area. The area of each directional sign shall not exceed four square feet.
c.
Height. The height of each directional sign including the base may not exceed four feet.
d.
Location.
1.
Directional signs shall be set back from any property line at least one-half the height of the sign; and
2.
Signs shall not be located so as to impair the vision of the driver of a vehicle traveling either into, out of, or through the site.
(6)
Off-site directional signs. Non-residential uses located outside the valley growth boundary may request a zoning clearance approval for off-site directional signs. Off-site directional sign requests shall meet the following criteria:
a.
Applicant has demonstrated the sign(s) is necessary to direct customers to the business.
b.
Signs are located within one mile (to extent feasible) of turn-off road that business is located on.
c.
Sign shall be located at least 500 feet from another off-site directional sign located on the same side of the roadway.
d.
Sign does not exceed 32 square feet in area and eight feet in height. Shared signs for two or more businesses shall not exceed 70 square feet in area.
e.
Sign copy is limited to name and address of business, logo not exceeding two square feet in area, turning direction and distance to turn.
f.
Written proof from property owner allowing the placement of off-site sign on their property.
g.
Sign is located outside of public right-of-way and clear vision triangle.
h.
The business name and information shall be removed from the sign within 30 days of the business closing or relocating. Off-site directional signs shall be removed if no business name has been advertised for a period of 90 days.
i.
Off-site directional signs shall not be used to affix temporary banner signs or other signs or information not directly related to the purpose of the off-site directional sign.
(7)
Menu/order board signs. Menu/order board signs are permitted according to the standards of Section 11.27.080, Standards for Specific Sign Types.
(8)
Programmable electronic signs. Programmable electronic signs are permitted according to the following standards:
a.
Uses allowed with. Programmable electronic signs are allowed on the site of the following uses and for the following purposes:
1.
On the site of a service station, in order to display the price of fuel.
2.
On the site of a Hotel or Motel, in order to display room rates and vacancies.
3.
On the site of a theater, cinema, stadium, auditorium, church, or similar community assembly, cultural institution, indoor entertainment and recreation, and outdoor entertainment uses, programmable electronic signs shall be limited to advertisement or notification of events occurring solely on the premises or within the immediate community. Signs may also be used to post emergency information.
4.
In order to display time and temperature.
5.
Governmental signs for posting public and community information.
b.
Standards. Programmable electronic signs shall comply with the provisions for freestanding signs as provided by Subsection 11.27.080(1), Freestanding Signs, and wall signs as provided by Subsection 11.27.080(2), Wall Signs.
c.
Cinemas and theaters. In addition to the other standards of this Section, the following provisions apply to signs on the site of a cinemas or theaters.
1.
Number. A maximum of one programmable electronic sign is permitted per movie theatre.
2.
Location.
i.
Displays shall be located within ten feet of a box office, ticket window, or building entrance.
ii.
Signs shall be oriented to be readable by pedestrians rather than from auto travel areas.
3.
Area. Programmable electronic signs shall be limited to a maximum area of 30 square feet.
(9)
Service stations. In addition to the other standards of this Chapter, the following provisions apply to signs on the site of a service station.
a.
Freestanding fuel price signs.
1.
Number. In addition to the freestanding sign for an individual use permitted by Section 11.27.110, Sign Standards—Non-residential Districts, each service station shall be permitted to erect and maintain one freestanding price sign for the primary purpose of advertising motor vehicle fuel prices. The sign shall comply with the provisions of California Business and Professions Code § 13531 regarding display requirements.
2.
Location.
i.
Freestanding fuel price signs shall not be erected or maintained any closer than three feet to any building; and
ii.
Any freestanding fuel price sign shall maintain a setback, measured from that part of the sign that is closest to the nearest property line of the parcel or lot on which it is placed, equal to at least one-half the height of the sign.
3.
Sign area. The maximum area of any fuel price sign shall be 100 square feet.
4.
Maximum height. The maximum height for any motor vehicle fuel price sign shall be 15 feet.
5.
Base design. The base of any fuel price sign shall be constructed of materials that match the exterior materials utilized on the main building.
6.
Electronic displays.
i.
Fuel price signs may consist of programmable electronic signs. Use of such programmable electronic signs shall be limited to the portion of any sign structure devoted exclusively to display of motor vehicle fuel price information required or permitted by California Business and Professions Code § 13530 et seq.
ii.
Displays shall not be flashing or moving but shall remain static. Displays may not be changed more than once per 12-hour period.
b.
Wall signs. Wall signs associated with a service station shall comply with the standards of Section 11.27.080(2), Wall Signs, except as otherwise specified in this Section.
c.
Awning signs. Each service station site may have up to four awning signs located upon the fuel canopy. Corporate logos and symbols shall be included in sign area.
d.
Combined area of wall and awning signs. The combined area permitted for all wall signs and awning signs for each service station shall not exceed 200 square feet.
e.
Fuel pump and under-canopy signs. Additional signs advertising the price of each grade of gasoline may be placed on each gasoline pump or beneath any canopy which is over the gasoline pumps.
Temporary banners, streamers, flags (excludes official flags pursuant to Chapter 11.27.030, Exempt Signs), or portable signs, as defined herein, for special events or sales, such as new car sales, clearance sales, outdoor fairs and sales, grand openings, and events of a similar nature. These signs shall not replace the primary permanent sign(s) for a business, and the business must have a permanent sign permit on file with the County.
(1)
Number. No more than two such temporary signs may be erected per business at any one time.
(2)
Duration. Signs may be posted on a continuous basis, but shall be kept in a good state of repair and preservation. These signs shall be made of a durable material and shall be subject to the same maintenance provisions as permanent signs.
(3)
Design. Temporary signs shall not be illuminated and shall not contain moving parts.
(4)
Maximum area. The following standards will be utilized in determining the maximum sign square footage allowed per business:
a.
Building or tenant spaces having less than 50 linear feet of building frontage are allowed a total of 60 square feet of sign area.
b.
Buildings or tenant spaces within a building complex having more than 50 linear feet of building frontage but less than 100 feet of building frontage are allowed a total of 80 square feet of sign area.
c.
Buildings or tenant spaces within a building complex having more than 100 feet of building frontage are allowed a total of 120 square feet of sign area.
(5)
Traffic and visibility. Such temporary signs shall in no way obstruct or visually impair the public right-of-way or internal walkways.
(6)
Location. If a banner sign is used, it may be affixed to the face of a building, perimeter wall/fence, or permanent freestanding sign. If attached to a freestanding sign, it shall be fully adhered to the face of the existing sign and be restricted to only one sign per center/use. Freestanding banners shall be adequately anchored to the ground in a manner that can be removed and does not cause a safety hazard. Temporary signs shall be restricted to the building areas that front onto a street or parking lot directly adjacent to the business for which the sign is posted. If affixed to a building, these signs shall not extend above the roofline or parapet of the structure.
(7)
Additional temporary signs may be authorized for a limited period of time through approval of a waiver by the Zoning Administrator.
(a)
PSPP required. A planned sign permit program (PSPP) is required for:
(1)
Off-site subdivision signs not in conformance with Section 11.27.080(6), Subdivision Signs.
(2)
Plan area (i.e. specific plan, community plan, area plan) signs not in conformance with the standards of this Chapter.
(3)
Community or regional marketing or branding signs.
(4)
Modification of an existing PSPP.
(b)
Application information. An application for a PSPP shall be filed with the Planning Department, consistent with the procedures of Chapter 11.53, Common Procedures. In addition to any other required information, applications for a PSPP shall include the following information as applicable:
(1)
Computation of total allowable sign area for the site and total area of all proposed signage.
(2)
A site plan indicating the location of buildings and all proposed signs;
(3)
Elevation drawings of all buildings on the site on which signs are proposed to be located, with the general size and placement of signs indicated on the elevations;
(4)
Drawings of generic sign types, including information on sign materials and color schemes;
(5)
A written program of criteria for all sign types, including, but not limited to, number, type, location, size, height, materials, letter style, colors, and illumination; and
(6)
Any additional information or materials necessary for processing and review of the application as deemed necessary by the Planning Director.
(c)
Allowable modifications. A PSPP may provide for additional sign area and other deviations from the standards of this Chapter.
(d)
Decision-making authority.
(1)
An application for a PSPP shall be reviewed and acted upon by the Development Review Committee.
(2)
In the case of projects that require other approvals from the Planning Commission or Board of Supervisors, the decision-making authority for the other permit shall be the decision-making authority for the PSPP.
(e)
Criteria for approval. The decision-making authority shall only approve a PSPP if it makes all of the following findings:
(1)
The sign program incorporates common design elements such as sign materials, colors, and/or themes that will serve to create a coherent appearance for the site;
(2)
The proposed signs will be visually compatible in style, scale, and character with on-site buildings and any surrounding structures;
(3)
Building-mounted signs will be in appropriate proportion to building facades;
(4)
Proposed signs will not adversely affect surrounding land uses or obscure adjacent conforming signs;
(5)
Future tenants will be provided adequate opportunities to construct, erect or maintain a sign for identification;
(6)
Directional signage and building addressing is adequate for pedestrian and vehicular circulation and emergency vehicle access; and
(7)
The PSPP is consistent with any adopted design guidelines or sign standards for any specific, community, or area plan covering the site.
(f)
Effect of PSPP.
(1)
Upon approval of a PSPP, all future signs erected in the area governed by the PSPP shall conform to the PSPP, and no permits shall be issued for signs not in conformance with the criteria of the PSPP.
(2)
Relief from the provisions or criteria of a PSPP may be granted only with the approval of a new PSPP.
(3)
If the provisions of an approved PSPP conflict with other provisions of this Chapter, the PSPP shall control.
(g)
Permits for sign within a PSPP. Any person wishing to erect or maintain a sign within any area governed by a PSPP shall apply for a building permit and obtain a Zoning Clearance. The Zoning Administrator shall grant a clearance for individual signs consistent with the PSPP and deny an application for any sign(s) not in conformance with the criteria of an applicable PSPP.
(h)
Lessees to be informed of PSPP. Lessees within developments subject to the requirements of an approved PSPP shall be made aware of the PSPP in their lease.
All existing non-conforming signs shall either be removed or modified to conform with provisions of this Chapter when a change of use or occupancy, or expansion of a use is approved, except as provided below:
(1)
Pole signs. The continued use of legally established pole signs in a Commercial District shall be permitted, provided no modification or alteration is made other than change of copy.
(2)
Limited alterations. A non-conforming sign may not be expanded, extended, reconstructed, moved, or altered in any way, except according to the following provisions:
a.
Changes in sign face, copy, graphic design or color are permitted.
b.
Such non-conforming sign may be removed for purposes of repair and routine maintenance, including painting, provided that such sign is replaced within 60 days of its removal.
c.
Such non-conforming sign may be removed for the purpose of remodeling a building, provided that replacement occurs within 30 days after remodeling is completed.
(3)
Restoration of a damaged sign.
a.
Whenever a lawful non-conforming sign is destroyed by fire or other calamity to an extent of 50 percent or less, the sign may be restored and the non-conforming use of the sign may be resumed, provided that restoration is started within one year and diligently pursued to completion.
b.
Whenever a non-conforming sign is destroyed by fire or other calamity to a greater extent than 50 percent, or is voluntarily razed or is required by law to be razed, the sign shall not be restored except in full conformity with this Code.
c.
The extent of damage or partial destruction shall be based upon the ratio of the estimated cost of restoring the sign to its condition prior to such damage or partial destruction, to the estimated cost of duplicating the entire sign as it existed prior thereto. Estimates for this purpose shall be made or shall be reviewed and approved by the Building Official or his or her designee.
(4)
Abandonment of non-conforming sign. Whenever a non-conforming sign has been abandoned, or the use of the property has been discontinued for a continuous period of 90 days, the non-conforming sign shall be removed.
Every sign displayed within the County, including but not limited to those signs for which permits are or are not required, shall be maintained in good physical condition. All signs, together with supports, braces, anchors, and electrical components, shall be kept in a safe, presentable condition. All defective or broken parts shall be replaced. Exposed surfaces shall be kept clean, in good repair, and painted where paint is required. The Planning Director may order the repair or removal of any sign determined by the County to be unsafe, defective, damaged, or substantially deteriorated. The Planning Director may declare a sign abandoned if, after 90 days' written notice to the permit holder, the permit holder has failed or refused to maintain the sign. Upon such declaration, the sign may be considered abandoned and abated as provided in Section 11.27.160, Removal of Illegal Signs.
The following signs as described below are declared to be public nuisances and may be removed by the Planning or Building Director or his or her designated representative in accordance with the abatement procedure described in Chapter 7.36, Property Maintenance Ordinance, of the County Code.
(1)
Abandoned signs (over 90 days).
(2)
Destroyed or damaged signs (over 50 percent and the destruction is other than facial copy replacement).
(3)
Flashing, rotating, or flying signs.
(4)
Non-conforming temporary signs.
(5)
Unsafe signs or any sign that constitutes a traffic hazard.
(6)
Any other sign that is prohibited per Section 11.27.040, Prohibited Signs.
(7)
Any sign installed after March 26, 1985 without a building permit which sign required a building permit at the time of its installation.
The provisions of this Section may be waived or modified through approval of a waiver or variance where the decision-making authority finds the strict adherence to the sign regulations is not practical or will cause an undue hardship.
(a)
The lack of improved sidewalks within the valley growth boundary of Yuba County in many instances forces pedestrians, including school children, to walk in the streets and to be subjected to the hazards of vehicular traffic, and the lack of sidewalks during rainy weather has caused unhealthy conditions resulting from pedestrians walking through mud or water along the street or dirt sidewalks.
(b)
The lack of improved curbs and gutters within the valley growth boundary of Yuba County permits poor drainage, puddles of water, the accumulation of filth, and subjects pedestrians and children in the normal sidewalk area to increased risk from accidental injury by vehicular traffic.
(c)
The lack of improved streets within the valley growth boundary of Yuba County also permits poor drainage, puddles of water, and accumulation of filth and, in addition, impedes the operation of fire trucks, police cars and other emergency vehicles.
(d)
The existence of unimproved curbs, gutters, sidewalks and streets adjoining unimproved real property dwellings and buildings within the valley growth boundary of Yuba County or conversely, the lack of adequate curbs, gutters, sidewalks and streets is hereby found and declared to be prejudicial and dangerous to the public health, safety and welfare of the inhabitants of the County.
(e)
Throughout the County of Yuba, in order to provide for the proper and orderly development of public road, drainage, utility, and related systems for the benefit of the public and to provide for the general welfare, health and safety of the public, it has been determined that right-of-way dedications shall be required as provided in this Chapter.
(a)
Construction of new buildings within the valley growth boundary. Any person who places or constructs or causes to be placed or constructed in the urban areas of Yuba County any building, dwelling, or other structure on a vacant parcel for which a building permit is required, shall construct driveways, curbs, gutters, sidewalks and streets in accordance with the County of Yuba Standard Plans and Specifications along all street frontage adjoining the property upon which building, dwelling, or other structure is constructed, unless adequate curbs, gutters, sidewalks or streets already exist. In each instance, the Department of Public Works of the County of Yuba shall determine whether or not adequate curbs, gutters, sidewalks and streets already exist, and an endorsement to that effect shall be made on each application for a building permit prior to the time such permit is issued.
(b)
Alteration, expansion or enlargement of existing buildings within the valley growth boundary. Any person who constructs or causes to be constructed any accessory building or who alters, enlarges or expands or causes to be altered, enlarged or expanded any building, dwelling, or other structure in any urban area of Yuba County where the valuation of such accessory building, alteration, enlargement, or expansion exceeds the sum of $25,000.00 (within a three-year period), shall also construct curbs, gutters, sidewalks and streets in accordance with the County of Yuba Standard Plans and Specifications along all street frontage adjoining the property upon which such building, dwelling, or other structure is altered, enlarged, or expanded, or upon which such accessory building is constructed, unless adequate curbs, gutters, sidewalks or streets already exist. In each instance the Department of Public Works of the County of Yuba shall determine whether or not adequate curbs, gutters, sidewalks and streets already exist, and an endorsement to that effect shall be made on each application for a building permit prior to the time such permit is issued.
(c)
Use permit or variance. The decision-making authority may require as a condition for the issuance of a use permit or variance that the applicant for such use permit or variance construct or cause to be constructed driveways, curbs, gutters, sidewalks, streets, and drainage improvements to conform to the policy provisions of the Yuba County General Plan as adopted or amended and in accordance with the County of Yuba Standard Plans and Specifications.
(d)
Waiver. The Director of Public Works may modify, or through recordation of a Deferred Improvement Agreement, defer the requirement for curbs, gutters, sidewalks, or streets when he or she finds that any of the following conditions exist:
(1)
The proposed improvement cannot function properly due to lack of complementary facilities on the adjacent frontage or reasonably appurtenant to such frontage, and there is no planned or budgeted work by the County or other appropriate agency to provide such complementary facilities.
(2)
Topographical features or other physical conditions would prevent the actual installation.
(3)
Topographical features or other physical conditions would permanently obstruct or prevent proper functioning and use of the completed improvements.
(e)
Review by Board of Supervisors. Upon written application being made to the Board of Supervisors, the Board of Supervisors may waive or modify by resolution or minute action the requirements of the Department of Public Works when the Board of Supervisors finds that any one of the following conditions exist. The decision of the Board to approve, modify, conditionally approve, or waive the requirements of the Department of Public Works shall be final. Said conditions are as follows:
(1)
The Board of Supervisors determines that because of lack of adequate data in regard to grades, plans or surveys, the construction of curbs, gutters and sidewalks should be deferred to a later date.
(2)
The Board of Supervisors determines that the County or any other agency has planned or budgeted for a project encompassing the block or other appropriate unit of the area in question and the proposed improvements normally required under this Chapter would conflict with such project; or such improvements could not function properly without completion of the above-mentioned project, in which event the required improvement may be deferred for a period of two years subject to the execution of an agreement providing for the installation of the improvements within such two-year period or within such period thereafter as extended by the Board of Supervisors. Such agreement shall provide that the applicant shall furnish a faithful performance bond to be approved by the Board and by its terms made to inure to the benefit of the County and conditioned upon the performance of the terms and conditions of said agreement.
(3)
The Board of Supervisors determines that the public health, safety and welfare of the inhabitants of said county would not be endangered by the deferment of the construction of curbs, gutters, sidewalks and streets in conjunction with the proposed construction or expansion.
The required street frontage improvements shall be designed and constructed in accordance with County standards and specifications, and shall be subject to inspection and approval by the Director of Public Works.
(1)
Arrangements for relocation of public utility facilities. In the event that the Public Works Director determines that the contemplated construction of adequate curbs, gutters, sidewalks or streets as may be required in individual cases will necessitate the relocation or alteration of public utility facilities, including, but not limited to gas, electricity, telephone and water, said Public Works Director may require the person requesting the building permit pursuant to this Chapter to produce satisfactory evidence that such person has made arrangements and financial coverages with such public utility companies for the relocation or modification of said public utility facilities.
(2)
Denial of final approval and acceptance. The Building Official shall deny final approval and acceptance and shall refuse to allow final public utility connections to any such building or structure, unless the Director Public Works determines that the installation of such improvements may be made at some future date, and in such event their construction and installation shall be guaranteed to the satisfaction of the Public Works Director or the Board of Supervisors.
The Director of Public Works is empowered to collect fees in lieu of actual construction to cover the estimated costs of constructing curbs, gutters, sidewalks and streets and related improvements required by this Chapter when the following conditions exist:
(1)
The Director of Public Works finds that the proposed improvements will not function properly at the time of development of the property.
(2)
The proposed improvements can be more economically constructed in conjunction with programmed complementary facilities that are planned to be constructed subsequent to the date of map recordation or other granting of entitlement by the County, provided that said delay would not result in any detriment to the general health, safety and welfare to the residents of the County.
(a)
General.
(1)
Dedication. In both urban and non-urban areas of Yuba County, any person who places or constructs or causes to be placed or constructed any building, dwelling, or other structure, or any new installation for which a building permit, use permit, or other entitlement is required shall, in addition to other requirements of this Chapter and subject to the requirements stated in Subsections (B) and (C) of this Section, dedicate to the County sufficient right-of-way from the centerline of the roadway to bring the one-half width of the right-of-way adjoining the property upon which such building, dwelling, or other structure is constructed, to one-half of the width outlined in the Circulation section of the Community Development Element of the General Plan or the County standard plans for the particular road classification, or as approved by the Director of Public Works. Right-of-way section shall be full width if road bisects subject property (i.e. property is located on both sides of the road). Such right-of-way dedication may be offered to County in fee or easement as determined by the Director of Public Works
(2)
Setback requirement. In both urban and non-urban areas of Yuba County, any person who places or constructs or causes to be placed or constructed any building, dwelling, or other structure, or any new installation for which a building permit, use permit or other entitlement is required shall, in addition to other requirements of this Chapter, comply with a building setback area over that portion of the property which fronts existing streets. The setback area shall be as required by the zone district that the property is located in.
(b)
Conditional use permits. All Minor Use Permits and (Major) Conditional Use Permits will require dedications in accordance with Subsection (a) of this Section. However for parcels having greater than 200 feet of undeveloped frontage, instead of dedications being required along the entire frontage, dedications may be limited to the frontage of that portion of the parcel being improved, except that in no case shall the length of the dedication be less than 200 feet or the width of the lot frontage, whichever is less. For parcels in which the proposed site improvements are not contiguous with the road, the Public Works Department will determine the length of the required dedication within the property limits necessary to provide for right-of-way needs for all current and future impacts produced by the project and ensure adequate right-of-way to meet future circulation needs, but in no case shall such dedication be less than 200 feet of frontage or the width of the lot frontage, whichever is less. The determination made pursuant to the preceding sentence may be appealed to the Planning Commission.
(c)
Building permits. All building permits will require dedications in accordance with Subsection (a) of this Section. However, for parcels having greater than 200 feet of undeveloped frontage, instead of dedications being required along the entire frontage, dedications may be limited to the frontage of that portion of the parcel being improved, except that in no case shall the length of dedication be less than 200 feet or the width of the lot frontage, whichever is less. For parcels in which the proposed site improvements are not contiguous with the road, the Public Works Department will determine the length of the required dedication within the property limits necessary to provide for right-of-way needs for all current and future impacts produced by the project and ensure adequate right-of-way to meet future circulation needs, but in no case shall such dedication be less than 200 feet of frontage or the width of the lot frontage, whichever is less. The determination made pursuant to the preceding portions of this Subsection may be appealed to the Planning Commission.
(d)
Exemption.
(1)
Right-of-way dedications shall not be required pursuant to Subsection (c) above for a building permit issued for improvements having a valuation less than $25,000.00 (within a three-year period) and provided that any building meets the building setback requirements described in Subsection (a)(2) of this Section.
(e)
Waiver.
(1)
Director of Public Works. The Director of Public Works shall have the authority to waive dedications for rights-of-way and requirement for setback width required for future right-of-way where there are existing permanent structures within these areas. The waiver shall be limited to the area necessary to preserve the existing facilities.
(2)
Board of Supervisors. Upon written application being made to the Board of Supervisors of the County of Yuba, the Board of Supervisors may waive or modify the dedication and setback requirements of this Section upon the showing of good cause. Good cause shall be shown if a finding can be made that such action is in keeping with the purposes and intent of this Section and the Yuba County General Plan.
Urban development within the valley growth boundary shall be subject to the following requirements:
(1)
Required undergrounding of utility wires in district. Whenever the Board of Supervisors creates an underground utility district and orders the removal of poles, overhead wires and associated overhead structures, it shall be unlawful for any person or utility to erect, construct, place, keep, maintain, continue, employ or operate poles, overhead wires and associated overhead structures in the district after the date when said overhead facilities are required to be removed by such resolution, except as said overhead facilities may be required to furnish service to an owner or occupant of property prior to the performance by such owner or occupant of the underground work necessary for such owner or occupant to continue to receive utility service as provided in Section 11.29.030, Responsibilities, hereof, and for such reasonable time required to remove said facilities after said work has been performed, and except as otherwise provided in this Chapter.
(2)
Exception for emergency or unusual circumstances. Notwithstanding the provisions of this Chapter, overhead facilities may be installed and maintained for a period, not to exceed ten days, without authority of the Board of Supervisors in order to provide emergency service. The Board of Supervisors may grant special permission, on such terms as the Board may deem appropriate, in cases of unusual circumstances, without discrimination as to any person or utility, to erect, construct, install, maintain, use or operate poles, overhead wires and associated overhead structures.
(3)
Other exceptions. This Chapter and any resolution creating a district, unless otherwise provided in such resolution, does not apply to the following types of facilities:
a.
Any County facilities or equipment installed under the supervision and to the satisfaction of the Chief Building Official.
b.
Poles or electroliers used exclusively for street lighting.
c.
Overhead wires (exclusive of supporting structures) crossing any portion of a district within which overhead wires have been prohibited, or connecting to buildings on the perimeter of a district, when such wires originate in an area from which poles, overhead and associated overhead structures are not prohibited.
d.
Poles, overhead wires and associated overhead structures used for the transmission of electric energy at nominal voltages in excess of 34,500 volts.
e.
Overhead wires attached to the exterior surface of a building by means of a bracket or other fixture and extending from one location on the building to another location on the same building or to an adjacent building without crossing any public street.
f.
Antennae, associated equipment and, supporting structures used by a utility for furnishing communication services.
g.
Equipment appurtenant to underground facilities, such as surface mounted transformers, pedestal-mounted terminal boxes and meter cabinets, and concealed ducts.
h.
Temporary poles, overhead wires and associated overhead structures used or to be used in conjunction with construction projects.
(a)
Public hearing by Board of Supervisors. The Board of Supervisors may from time to time call public hearings to ascertain whether the public necessity, health, safety or welfare requires the removal of poles, overhead wires and associated overhead structures within designated areas of the County and the underground installation of wires and facilities for supplying electric, communication, or similar or associated service. The County Clerk shall notify all affected property owners as shown on the last equalized assessment roll and utilities concerned by mail of the time and place of such hearings at least ten days prior to the date thereof. Such hearing shall be open to the public and may be continued from time to time. At each such hearing all persons interested shall be given an opportunity to be heard. The decision of the Board of Supervisors shall be final and conclusive.
(b)
Board of Supervisors may designate by resolution. If after any such public hearing the Board of Supervisors finds that the public necessity, health, safety or welfare requires such removal and such underground installation within a designated area, the Board of Supervisors shall, by resolution, declare such designated area an underground utility district and order such removal and underground installation. Such resolution shall include a description of the area comprising such district and shall fix the time within which such removal and underground installation shall be accomplished and within which affected property owners must be ready to receive underground service. A reasonable time shall be allowed for such removal and underground installation, having due regard for the availability of labor, materials and equipment necessary for such removal and for the installation of such underground facilities as may be occasioned thereby.
(c)
Notice to property owners and utility companies.
(1)
Within ten days after the effective date of a resolution creating a district; the County Clerk shall notify all affected utilities and all persons owning real property within the district created by said resolution or the adoption thereof. Said County Clerk shall further notify such affected property owners of the necessity that, if they or any person occupying such property desire to continue to receive electric, communication, or similar or associated service, they or such occupant shall provide all necessary facility changes on their premises so as to receive such service from the lines of the supplying utility or utilities of a new location, subject to applicable rules, regulations and tariffs of the respective utility or utilities on file with the County
(2)
Notification by the County Clerk shall be made by mailing a copy of the resolution together with a copy of this Chapter, to affected property owners as such are shown on the last equalized assessment roll and to the affected utilities.
(a)
Utility companies. If underground construction is necessary to provide utility service within an established district, the supplying utility shall furnish that portion of the conduits, conductors, and associated equipment required to be furnished by it under its applicable rules, regulations and tariffs on file with the Commission.
(b)
Property owners.
(1)
Every person owning, operating, leasing, occupying or renting a building or structure within a district shall allow to be constructed and provide that portion of the service connection on his or her property between the facilities under responsibility of the utility companies and the termination facilities on or within said building or structure being served, all in accordance with applicable rules, regulations and tariffs of the respective utility or utilities on file with the Commission, and within the ordinances and regulations of the County of Yuba. If the above is not accomplished by any person within the time provided for in the resolution establishing the district, the Chief Building Official shall give notice in writing to the person in possession of such premises, and a notice in writing to the owner thereof as shown on the last equalized assessment roll to provide the required underground facilities within ten days after receipt of such notice.
(2)
The notice to provide the required underground facilities may be given either by personal service or by mail. In case of service by mail, the notice must be deposited in the United States mail in a sealed envelope with postage prepaid, addressed to the person in possession of such premises, and the notice must be addressed to the owner thereof as such owner's name appears, and must be addressed to such owner's last known address as the same appears on the last equalized assessment roll. If notice is given by mail, such notice shall be deemed to have been received by the person to whom it has been sent within 48 hours after the mailing thereof. If notice is given by mail to either the owner or occupant of such premises, the Chief Building Official shall, within 48 hours after the mailing thereof, cause a copy thereof, printed on a card not less than eight inches in size, to be posed in a conspicuous place on said premises.
(3)
The notice given by the Chief Building Official to provide the required underground facilities shall be particularly specific that work is required to be done, and shall state that if said work is not completed within 30 days after receipt of such notice, the Chief Building Official will provide such required underground facilities, in which case the cost and expense thereof will be assessed against the property benefited and become a lien upon such property.
(4)
If upon the expiration of the 30-day period, the said required underground facilities have not been provided, the Chief Building Official shall forthwith proceed to do the work provided, however, if such premises are unoccupied and no electric or communication services are being furnished thereto, the Chief Building Official shall in lieu of providing the required underground facilities, have the authority to order the disconnection and removal of any and all overhead service wires and associated facilities supplying utility service to said property. Upon completion of the work by the Chief Building Official, he or she shall file a written report with the Board of Supervisors setting forth the fact that the required underground facilities have been provided and the cost thereof, together with a legal description of the property against which such cost is to be assessed. The Board of Supervisors shall thereupon fix a time and place for hearing protests against the assessment of the cost of such work upon such premises, which said time shall not be less than ten days thereafter.
(5)
The Chief Building Official shall forthwith, upon the time for hearing such protests having been fixed, give a notice in writing to the person in possession of such premises, and a notice in writing thereof to the owner thereof, in the manner hereinabove provided for the giving of the notice to provide the required underground facilities, of the time and place that the Board of Supervisors will pass upon such report and will hear protests against such assessment. Such notice shall also set forth the amount of the proposed assessment.
(6)
Upon the date and hour set for the hearing of protests, the Board of Supervisors shall hear and consider the report and all protests, if there be any, and then proceed to affirm, modify or reject the assessment.
(7)
If any assessment is not paid within five days after its confirmation by the Board of Supervisors, the amount of the assessment shall become a lien upon the property against which the assessment is made by the Chief Building Official, and the Chief Building Official is directed to turn over to the County Clerk Recorder a notice of lien on each of said properties on which the assessment has not been paid and said Assessor and Tax Collector shall add the amount of said assessment to the next regular bill for taxes levied against the premises upon which said assessment was not paid. Said assessment shall be due and payable at the same time as said property taxes are due and payable, and if not paid when due and payable, shall bear interest at the rate of six percent per annum.
(c)
County. The County shall remove at its own expense all County-owned equipment from all poles required to be removed hereunder in ample time to enable the owner or user of such poles to remove the same within the time specified in the resolution establishing the district.
In the event that any act required by this Chapter or by resolution cannot be performed within the time provided on account of shortage of materials, war, restraint by public authorities, strikes, labor disturbances, civil disobedience, or any other circumstances beyond the control of the actor, then the time within which such act will be accomplished shall be extended for a period equivalent to the time of such limitation.
(a)
To implement state legislation (Government Code Section 65915 et seq.) intending that density bonuses and other incentives contribute significantly to the economic feasibility of housing that is affordable to the types of household and qualifying residents identified in Section 11.30.040 (Qualifying Projects). If any provision of this Chapter conflicts with state law, the latter shall control. Applicable statutes shall be consulted for amendments prior to applying the provisions in this Chapter. The County reserves the right to review applications for a density bonus in accordance with state density bonus law.
(b)
To provide both owner-occupied and rental housing units that are affordable to all households, particularly to those of very low, lower, moderate-income families, and senior citizens in a manner that will protect the health, safety, and general welfare of the residents of Yuba County.
The density bonuses and incentives contained in this Chapter shall apply to housing developments eligible for a density bonus under state density bonus law. This Chapter shall be applicable to all zoning districts that permit residential uses. When an applicant seeks a density bonus for a housing development or for the donation of land for housing within the County that meets the requirements set out in California Government Code Section 65915, the actions and procedures set out in this Chapter shall apply. The density bonus provisions of California Government Code Sections 65915 et seq., as may be amended from time to time, are incorporated by reference into this Chapter.
(a)
The granting of a density bonus shall not require a General Plan amendment, Zoning Map amendment, Zoning Code amendment, or other discretionary approval. If approval of the base units in the project (without the bonus units) requires discretionary review that shall be conducted without considering the bonus units.
(b)
Application fees shall be collected in accordance with Section 11.57.040. If an application for a density bonus requires an unusual amount or specialized type of study or evaluation by County staff, consultant or legal counsel, County staff shall estimate the cost thereof and require the applicant to pay an additional fee or make one or more deposits to pay such cost before the study or evaluation is begun. On completion of the study or evaluation, and before the Board of Supervisors decides the application, County staff shall determine the actual cost of the work and the difference between the actual cost and the amount paid by the applicant and shall require the applicant to pay any deficiency or shall refund to the applicant any excess.
(c)
A proposal for the waiver or reduction of development standards shall neither reduce nor increase the number of incentives or concessions to which the applicant is entitled pursuant to Government Code Section 65915(d).
(d)
The developer may locate the density bonus units in areas on the project site other than where the units for the lower-income households are located in the housing project.
(e)
The development shall conform to all lot area, yard, building height and set back, sign, wall and fence, landscaping and sidewalk, and parking standards contained in the underlying zone, except as listed in Section 11.30.110(1).
(f)
The development shall be connected to and served by a publicly owned and operated sanitary sewer system, piped community water system and storm water drainage facilities.
(g)
The County shall, within 90 days of receipt of a written proposal, notify the housing developer of the County's preliminary response and schedule a meeting with the applicant to discuss the proposal and the County's preliminary response (Government Code Section 65915.5(d)).
(h)
Decisions are final unless an appeal is filed pursuant to the procedures of Section 11.53.150, Appeals and Calls for Review.
(a)
Density bonuses are available to affordable housing developers for developments with five or more dwelling units in accordance with this Chapter for the following:
(1)
Housing developments that include a minimum affordable housing component (Section 11.30.050 and Section 11.30.140(A)).
(2)
Housing developments that include a minimum affordable housing component and a childcare facility (Section 11.30.060).
(3)
Senior citizen housing developments (Section 11.30.070).
(4)
Land donations for very low-income housing (Section 11.30.080).
(5)
One hundred percent affordable housing development, except that up to 20 percent of the total units in the development may be for moderate-income households (Section 11.030.100).
(b)
For the purpose of calculating a density bonus, the residential units must be on contiguous sites that are the subject of one development application, but do not have to be based upon individual subdivision maps or parcels (Government Code Section 65915(i)).
(a)
As demonstrated in Table 11.30.050-1, the amount of density bonus to which the applicant is entitled shall vary according to the amount by which the percentage of affordable housing units exceeds the percentages below. The applicant may also elect to accept a lesser percentage of density bonus.
(b)
Density bonus units authorized by this Chapter shall not be included when determining the number of target units required to qualify for a density bonus.
(c)
All density calculations resulting in fractional units shall be rounded up to the next whole number.
(d)
For a housing development set to be 100-percent affordable to lower-income households, exclusive of managers' units, refer to Section 11.30.100.
(a)
A density increase may be granted provided that all of the following criteria are met:
(1)
Compliance with Section 11.30.040 (Government Code Section 65915(h)(1)).
(2)
The housing development must include a childcare facility that will be located on the premises of, as part of, or adjacent to, the housing development (Government Code Section 65915(h)(1)).
(3)
Approval of the housing development must be conditioned to ensure that both of the following occur:
a.
The childcare facility must remain in operation for a period of time that is as long as or longer than the period of time during which the affordable units are required to remain affordable, pursuant to Section 11.30.130(b) (Government Code Section 65915(h)(2)(A)).
b.
Of the children who attend the childcare facility, the children of very low-income households, low-income households, or moderate-income households must equal a percentage that is equal to or greater than the percentage of dwelling units that are required under the respective minimum affordable housing component income category for which the density bonus is sought (Government Code Section 65915(h)(2)(B)).
(4)
The County has not made a finding based upon substantial evidence that the community has adequate childcare facilities (Government Code Section 65915(h)(3)).
(b)
If the requirements of Subsection 11.30.060(a) are met, then an applicant for a housing development with an affordable housing component and childcare facility is entitled to:
(1)
A density bonus pursuant to Section 11.30.050 (Density Bonus Allowance for Housing Development with Affordable Housing Component); and
(2)
An additional density bonus that is an amount of square feet of residential space that is equal to or greater than the amount of square feet in the childcare facility (Government Code Section 65915(h)(1)(A)).
An applicant for a senior citizen housing development or a mobile home park that limits residency based on age requirements for housing for older persons pursuant to Civil Code Sections 798.76 or 799.5 is entitled to a density bonus of 20 percent of the number of senior citizen housing development units and up to a maximum of 50 percent (Government Code Section 65915(b)(1)(C) and (f)(3)).
(a)
For a density bonus for a qualified land donation to be granted pursuant to Subsection 11.30.080(b), all the requirements of this Section must be met.
(1)
The applicant must be applying for a tentative subdivision map, parcel map, or other residential development approval (Government Code Section 65915(g)(1)).
(2)
The application must include at least a ten percent minimum affordable housing component for very low-income households (Government Code Section 65915(g)(1)).
(3)
The applicant must agree to donate and transfer qualified land, which is land that meets both the following criteria:
a.
The developable acreage and zoning classification of the land being transferred must be sufficient to permit construction of units affordable to very low-income households in an amount not less than ten percent of the number of residential units of the proposed development pursuant to Section 8116-2.5.1(a) (Government Code Section 65915(g)(2)(B)).
b.
The transferred land must be at least one acre in size or of sufficient size to permit development of at least 40 units, have the appropriate General Plan land use designation, be appropriately zoned with development standards for development at the density described in Government Code Section 65583.2(c)(3), and is or will be served by adequate public facilities and infrastructure (Government Code Section 65915(g)(2)(C)).
(4)
The qualified land must be transferred to the County or to a housing developer approved by the County. The County may require the applicant to identify and transfer the land to an approved housing developer (Government Code Section 65915(g)(2)(F)).
(5)
The qualified land must have all of the permits and approvals, other than Building Permits, necessary for the development of the very low-income housing affordable units on the qualified land, not later than the date of approval of the final subdivision map, parcel map, or residential development application filed. However, the County may subject the proposed development to subsequent design review to the extent authorized by Government Code Section 65583.2(i) if the design is not reviewed by the County prior to the time of transfer (Government Code Section 65915(g)(2)(D)).
(6)
The qualified land must be donated and transferred no later than the date of approval of the final subdivision map, parcel map, or residential development application (Government Code Section 65915(g)(2)(A)).
(7)
The qualified land and the affordable units must be subject to a deed restriction ensuring continued affordability of the units consistent with Section 11.30.060 (Allowed Density Bonus for Housing Development with Affordable Housing Component and Childcare Facility) or Section 11.30.100 (Allowed Density Bonus for 100-Percent Affordable Housing Development), which must be recorded against the qualified land at the time of the transfer (Government Code Section 65915(g)(2)(E)).
(8)
The qualified land must be within the boundary of the proposed development or, if the County agrees, within 0.25 mile of the boundary of the proposed development (Government Code Section 65915(g)(2)(G)).
(9)
A proposed source of funding for the very low-income household units must be identified not later than the date of approval of the final subdivision map, parcel map, or residential development application (Government Code Section 65915(g)(2)(H)).
(b)
If the requirements of Subsection 11.30.080(a) are satisfied, the applicant shall be entitled to at least a 15-percent increase above the otherwise maximum allowable residential density for the entire development, as follows in Table 11.30.80-1 (Government Code Section 65915(g)(1)):
A floor area ratio density bonus may be granted to an eligible housing development, upon request of the developer, in lieu of a density bonus awarded on the basis of dwelling units per acre.
(1)
In calculating the floor area ratio bonus pursuant to this Section, the allowable gross residential area in square feet shall be the product of all of the following amounts:
a.
The allowable residential base density in dwelling units per acre.
b.
The site area in square feet, divided by 43,560.
c.
2,250.
(2)
The County Board of Supervisors shall not impose any parking requirement on an eligible housing development in excess of 0.1 parking spaces per unit that is affordable to persons and families with a household income equal to or less than 120 percent of the area median income and 0.5 parking spaces per unit that is offered at market rate.
(3)
An applicant seeking to develop an eligible residential development shall be allowed to calculate impact fees based on square feet, instead of on a per-unit basis.
(4)
If an eligible housing development is zoned for mixed-use purposes, any floor area ratio requirement under a zoning ordinance or land use element of the General Plan applicable to the nonresidential portion of the eligible residential development shall continue to apply, notwithstanding the award of a floor area ratio bonus in accordance with this Section.
(5)
An applicant for a floor area ratio bonus may also submit to the County a proposal for specific incentives or concessions, pursuant to Section 11.30.130.
(a)
A density bonus shall be provided to a developer who agrees to construct a housing development in which 100 percent of the total units, including total units and density bonus units, exclusive of managers' units, are for lower-income households. Up to 20 percent of the total units may be designated moderate-income households.
(b)
A housing development that meets these criteria shall receive the following density bonus:
(1)
If not within a half-mile of a major transit stop: 80 percent.
(2)
If located within a half-mile of a major transit stop: No maximum controls on density.
The following additional incentives or concessions requested by an applicant shall be granted provided the developer agrees to construct affordable housing units in accordance with Section 11.30.040 unless the County makes the necessary findings contained in Government Code Subsection 65915(d), (i).
(1)
Affordable housing incentives. Government Code subsections 65915(d), (j), (k) and (l) govern the following provisions regarding affordable housing incentives.
a.
Subject to Section 11.30.110(3) (Criteria for Denial of Application for Incentives), all of the following applicable requirements must be satisfied to be granted an incentive(s) pursuant to Subsection 11.30.110(1)(a) and Section 11.30.110(2) (Number of Incentives Granted):
1.
The applicant for an incentive must also be an applicant for a density bonus and qualify for a density bonus pursuant to Section 11.30.040 (Government Code Section 65915(d)(1)).
2.
A specific written proposal for an incentive(s) must be submitted with the application for density bonus (Government Code Section 65915(b)(1) and (d)(1)).
3.
If an incentive(s) pursuant to Section 11.30.110 is sought, the applicant must establish that each requested incentive would result in identifiable, financially sufficient, and actual cost reductions for the qualified housing development (Government Code Section 65915(k)(1) and (3)).
4.
If an incentive(s) pursuant to Section 11.30.110 is sought, the applicant must establish that requirements of that section are met (Government Code Section 65915(k)(2)).
5.
If an additional incentive for a childcare facility is sought pursuant to Subsection 11.30.060(b), the applicant must establish that requirements of that section are met (Government Code Section 65915(h)(1)(B)).
6.
The granting of an incentive shall not be interpreted, in and of itself, to require a General Plan Amendment, zoning change, or other discretionary approval (Government Code Section 65915(j)). An incentive is applicable only to the project for which it is granted. An applicant for an incentive may request a meeting with the County and, if requested, the County will meet with the applicant to discuss the proposal (Government Code Section 65915(d)(1)).
b.
For the purposes of this Chapter, "incentive" means any of the following:
1.
A reduction in site development standards or a modification of Development Code requirements or design guidelines that exceed the minimum building standards approved by the California Building Standards Commission, as provided in Part 2.5 (commencing with Section 18901) of Division 13 of the Health and Safety Code, including, but not limited to, a reduction in setback and square footage requirements and in the ratio of vehicular parking spaces that would otherwise be required that results in identifiable, financially sufficient, and actual cost reductions (Government Code Section 65915(k)(1)).
2.
Approval of mixed-use zoning in conjunction with the qualified housing development if commercial, office, industrial, or other land uses will reduce the cost of the qualified housing development and if the commercial, office, industrial, or other land uses are compatible with the qualified housing development and the existing or planned development in the area where the proposed qualified housing development will be located (Government Code Section 65915(k)(2)).
3.
Other regulatory incentives proposed by the affordable housing developer or the County that result in identifiable, financially sufficient, and actual cost reductions (Government Code Section 65915(k)(3)).
4.
Nothing in this Section limits or requires the provision of direct financial incentives by the County for the qualified housing development, including the provision of publicly owned land, or the waiver of fees or dedication requirements (Government Code Section 65915(1)).
(2)
Number of incentives granted. Subject to Section 11.30.110(c) (Criteria for Denial of Application for Incentives), the applicant who meets the requirements of Section 11.30.040 shall receive the following number of incentives and as shown in Table 11.30.110-1.
a.
One incentive for qualified housing development projects that include at least 5 percent for very low-income households, at least ten percent of the total units for lower-income households, or at least ten percent for persons and families of moderate-income households in a common interest development (Government Code Section 65915(d)(2)(A)).
b.
Two incentives for qualified housing development projects that include at least ten percent for very low-income households, at least 17 percent of the total units for low-income households, or at least 20 percent for persons and families of moderate-income households in a common interest development (Government Code Section 65915(d)(2)(B)).
c.
Three incentives for qualified housing development projects that include at least 15 percent for very low-income households, at least 24 percent of the total units for lower-income households, or at least 30 percent for persons and families of moderate-income households in a common interest development (Government Code Section 65915(d)(2)(C)).
d.
Four incentives or concessions for qualified housing development projects that include 100 percent affordable units, except that up to 20 percent of the total units in the development may be for moderate-income households. If the project is located within one-half mile of a major transit stop, the project is also eligible to receive a height increase of up to three additional stories, or 33 feet.
e.
A qualified housing development proposal that includes a childcare facility shall be granted an additional incentive that contributes significantly to the economic feasibility of the construction of the childcare facility (Government Code Section 65915(h)(1)(B)).
(3)
Criteria for denial of application for incentives. Except as otherwise provided in this Chapter or by state law, if the requirements of Section 11.30.110(a) are met, the County shall grant the incentive(s) that are authorized by Section 11.30.110 unless a written finding, based upon substantial evidence, is made with respect to any of the following, in which case the County may refuse to grant the incentive(s):
a.
The incentive is not required to provide affordable housing costs or affordable rents for the affordable units subject to the qualified housing development application (Government Code Section 65915(d)(1)(A)).
b.
The incentive would have a specific, adverse impact, as defined in Government Code Section 65589.5(d)(2), upon the public health and safety or the physical environment or on any real property that is listed in the California Register of Historical Resources and for which there is no feasible method to satisfactorily mitigate or avoid the specific, adverse impact without rendering the development unaffordable to low- and moderate-income households (Government Code Sections 65915(d)(1)(B) and 65915 (d)(3)).
c.
The incentive would be contrary to state or federal law (Government Code Section 65915(d)(1)(C)).
d.
The community has adequate childcare facilities, in which case the additional incentive for a childcare facility, pursuant to Subsection 11.30.060, may be denied (Government Code Section 65915(h)(3)).
(4)
Requirements for waiver or modification of development standards.
a.
To qualify for a waiver or reduction of one or more development standards, the applicant must submit a written application (together with an application for a qualified housing development) that states the specific development standard(s) sought to be modified or waived and the basis of the request (Government Code Section 65915(e)(1)). An applicant for a waiver or modification of development standard(s) pursuant to this Section may request a meeting with the County to review the proposal. If requested, the County shall meet with the applicant (Government Code Section 65915(e)(1)). An application for the waiver or reduction of development standard(s) pursuant to this Section shall neither reduce nor increase the number of incentives to which the applicant is entitled pursuant to Section 11.30.110(b) (Government Code Section 65915(e)(2)).
b.
All of the following findings must be made for each waiver or reduction requested:
1.
The development standard for which a waiver or reduction is requested will have the effect of physically precluding the construction of the proposed qualified housing development at the densities or with the incentives permitted under this Chapter (Government Code Section 65915(e)(1)).
2.
The requested waiver or reduction of a development standard will not have a specific, adverse impact, as defined in Government Code Section 65589.5(d)(2), upon the health, safety, and/or physical environment or, if such a specific, adverse impact exists, there is a feasible method to satisfactorily mitigate or avoid the specific, adverse impact (Government Code Section 65915(e)(1)).
3.
The requested waiver or reduction of a development standard will not have an adverse impact on any real property that is listed in the California Register of Historical Resources (Government Code Section 65915(e)(1)).
4.
The requested waiver or reduction of a development standard is not contrary to state or federal law (Government Code Section 65915(e)(1)).
c.
If the requirements of Subsection 11.30.110(d)(1) and (2) are satisfied, the application for waiver or modification of development standard(s) shall be granted, and the County shall not apply a development standard that will have the effect of physically precluding the construction of a qualified housing development at the densities or with the incentives permitted by this Chapter (Government Code Section 65915(e)(1)).
A housing development that receives a waiver from any maximum controls on density shall only be eligible for a waiver or reduction of development standards pursuant to Section 11.30.110(d)(1) and (2) unless the County agrees to additional waivers or reductions of development standards (Government Code Section 65915(e)(3)).
(a)
Parking standard modifications pursuant to Subsection 11.30.120(b) are available only for qualified housing developments. An application for parking standard modifications stating the specific modification requested pursuant to Subsection 11.30.120(b) must be submitted with the qualified housing development application (Government Code Section 65915(p)(3)).
(b)
The maximum parking requirements, inclusive of parking for persons with a disability and guests, of a development meeting the criteria of Section 11.25.020 shall not exceed the following ratios if the applicant requests the use of such alternative standards:
(1)
Zero to one bedroom: one on-site parking space.
(2)
Two to three bedrooms: one and one-half on-site parking spaces.
(3)
Four or more bedrooms: two and one-half parking spaces.
(c)
If the total number of parking spaces required for a development is other than a whole number, the number shall be rounded up to the next whole number.
(d)
For purposes of this subsection, a development may provide "on-site parking" through tandem parking or uncovered parking, but not through on-street parking.
(e)
Exceptions. Upon request of the applicant, the following maximum parking standards shall apply, inclusive of parking for persons with a disability and guest parking, to the entire housing development subject to this Chapter, as required by Government Code Section 65915(p)(2):
(1)
A maximum of one-half parking spaces per bedroom shall apply when all the following conditions apply:
a.
The development includes at least 20 percent low-income units or at least 11 percent very low-income units provided for in Section 11.30.050 (Density Bonus Allowance for Housing Development with Affordable Housing Component). The development is located within one-half mile of a major transit stop, as defined in subdivision (b) of Section 21155 of the Public Resources Code, and there is unobstructed access to the major transit stop from the development.
(2)
No parking ratio shall apply when all of the following conditions apply:
a.
The development consists solely of rental units, exclusive of a manager's unit or units, with an affordable housing cost to lower-income families, as provided in Section 50052.5 of the Health and Safety Code and the development meets either of the following criteria:
1.
The development is located within one-half mile of a major transit stop and there is unobstructed access to the major transit stop from the development.
2.
The development is a for-rent housing development for individuals who are 62 years of age or older that complies with Sections 51.2 and 51.3 of the Civil Code and the development has either paratransit service or unobstructed access, within one-half mile, to fixed bus route service that operates at least eight times per day.
b.
The development consists solely of rental units, exclusive of a manager's unit or units, with an affordable housing cost to lower-income families, as provided in Section 50052.5 of the Health and Safety Code, and the development is either a special-needs housing development, as defined in Section 51312 of the Health and Safety Code, or a supportive housing development, as defined in Section 50675.14 of the Health and Safety Code. A development that is a special-needs housing development shall have either paratransit service or unobstructed access, within one-half mile, to fixed bus route service that operates at least eight times per day.
(f)
If the total number of parking spaces required for the qualified housing development is other than a whole number, the number shall be rounded up to the next whole number. For purposes of this Section, "on-site parking" may be provided through tandem parking or uncovered parking, but not through on-street parking (Government Code Section 65915(p)(2)).
(g)
Except as otherwise provided in this Section, all other provisions of Chapter 11.25.040 (Parking Space Requirements) applicable to residential development apply.
(h)
An applicant may request additional parking incentives beyond those provided in this Section if applied for pursuant to Section 11.30.110 (Government Code Section 65915(p)(3)).
(i)
Notwithstanding allowances in Subsection 11.30.120(c), if the County or an independent consultant has conducted an area-wide or jurisdiction-wide parking study in the last seven years, then the County may impose a higher vehicular parking ratio not to exceed the ratio described previously in Subsection 11.30.120(b), based on substantial evidence found in the parking study that includes, but is not limited to, an analysis of parking availability, differing levels of transit access, walkability to transit services, the potential for shared parking, the effect of parking requirements on the cost of market-rate and subsidized developments, and the lower rates of car ownership for low and very low-income individuals, including seniors and special-needs individuals. The County shall pay the costs of any new study. The County shall make findings, based on a parking study completed in conformity with this paragraph, supporting the need for the higher parking ratio.
(a)
Project design and phasing. Projects seeking an affordable housing benefit pursuant to this Chapter must comply with the following requirements, unless otherwise specified in writing by the County:
(1)
Location/dispersal of units. Affordable units shall be reasonably dispersed throughout the development where feasible and shall contain, on average, the same (or greater) number of bedrooms as the market-rate units.
(2)
Phasing. If a project is to be developed in phases, each phase must contain the same or substantially similar proportion of affordable units and market-rate units.
(3)
Exterior appearance. The exterior appearance and quality of the affordable units must be similar to the market-rate units. The exterior materials and improvements of the affordable units must be similar to, and architecturally compatible with, the market-rate units.
(b)
Application requirements. An application for one or more affordable housing benefits must be submitted as follows:
(1)
Each affordable housing benefit requested must be specifically stated in writing on the application form provided by the County.
(2)
The application must include the information and documents necessary to establish that the requirements of this Chapter are satisfied for each affordable housing benefit requested, including:
a.
For density bonus requests, that the requirements of Section 11.30.040 are met;
b.
For incentive requests, that the requirements of Section 11.30.110 are met;
c.
For development standard waiver or modification requests, that the requirements of Section 11.30.110.(4) are met; and/or
d.
For parking standard modification requests, that the requirements of Section 11.30.120 are met.
(3)
The application must be submitted concurrently with a complete application for a qualified housing development. When notifying the applicant for a density bonus whether the application is complete, the County shall also notify the applicant of the amount of density bonus for which the applicant is eligible, and if requested by the applicant, the parking ratio for which the applicant is eligible.
(4)
If the applicant requests incentives or concessions, or waivers or reductions of development standards, the County will now also be required to notify the applicant whether the applicant has provided adequate information for the County to make a determination as to those incentives, concessions, or waivers or reductions of development standards.
(5)
The application must include a site plan that complies with and includes the following:
a.
For senior citizen housing development projects, the number and location of proposed total units and density bonus units.
b.
For all qualified housing development projects other than senior citizen housing development projects, the number and location of proposed total units, affordable units, and density bonus units. The density bonus units shall be permitted in geographic areas of the qualified housing development other than the areas where the affordable units are located (Government Code Section 65915(i)).
c.
The location, design, and phasing criteria required by Subsection 11.30.130(a), including any proposed development standard(s) modifications or waivers pursuant to Section 11.30.110(4).
(6)
The application for a qualified housing development must state the level of affordability of the affordable units and include a proposal for compliance with Section 11.30.140 for ensuring affordability.
(7)
If a density bonus is requested for a qualified land donation pursuant to Section 11.30.080, the application must show the location of the qualified land in addition to including sufficient information to establish that each requirement in Section 11.30.080 has been met.
(8)
If an additional density bonus or incentive is requested for a childcare facility pursuant to Section 11.30.060 and/or Subsection 11.30.110(2), the application shall show the location and square footage of the childcare facility in addition to including sufficient information to establish that each requirement in Section 11.30.060 and/or Subsection 11.30.110(2) has been met.
(c)
An application for an affordable housing benefit under this Chapter will not be processed until all of the provisions of this Section are complied with as determined by the County and shall be processed concurrently with the application for the qualified housing development project for which the affordable housing benefit is sought. Prior to the submittal of an application for a qualified housing development, an applicant may submit to the County a preliminary proposal for affordable housing benefits.
(d)
The County shall adjust the amount of density bonus and parking ratios awarded based on any changes to the project during the course of development.
(e)
Determination on density bonus and affordable housing incentive program requirements. The decision-making body for the underlying qualified housing development application is authorized to approve or deny an application for an affordable housing benefit in accordance with this Chapter.
(1)
Affordable housing benefit determinations. An application for an affordable housing benefit shall be granted if the requirements of this Chapter are satisfied, unless:
a.
The application is for an incentive for which a finding is made in accordance with Section 11.30.110(3); or
b.
The underlying application for the qualified housing development is not approved independent of and without consideration of the application for the affordable housing benefit.
(2)
Affordable housing benefit compliance provisions. To ensure compliance with this Chapter and state law, approval of an application for an affordable housing benefit may be subject to, without limitation:
a.
The imposition of conditions of approval to the qualified housing development, including imposition of fees necessary to monitor and enforce the provisions of this Chapter;
b.
An affordable housing agreement and, if applicable, an equity-sharing agreement pursuant to Section 11.30.140; and
c.
Recorded deed restriction implementing conditions of approval and/or contractual or legally mandated provisions.
(3)
A decision regarding an affordable housing benefit application is subject to the appeal provisions of Section 11.53.150 (Appeals and Calls for Review).
(a)
General requirements. The County shall require the execution of an affordability agreement with the affordable housing developer, or its designee approved in writing by the County, as a condition of approval. The County may designate a qualified administrator or entity to administer the provisions of this Section on behalf of the County. The affordable housing agreement shall be recorded prior to, or concurrently with, final map recordation or, where the qualified housing development does not include a map, prior to issuance of a Building Permit for any structure on the site. The County is hereby authorized to enter into the agreements authorized by this Section on behalf of the County upon approval of the agreements by County Counsel for legal form and sufficiency. Said agreement shall be in the form provided by the County to include, but not be limited to, the following:
(1)
Term of agreement necessary to implement state law and this Section.
(2)
Description of project, including location, number of total units (including bedrooms), and number of reserved affordable units (including bedrooms).
(3)
Standards for qualifying household incomes and maximum rents or sale prices.
(4)
Process used to certify tenant income.
(5)
Description of how vacancies will be marketed and filled.
(6)
Enforcement mechanisms restricting reserved affordable units upon sale or transfer.
(7)
Process used to monitor and enforce affordability of reserved units.
(b)
Low or very low-income minimum affordable housing component or senior citizen housing development.
(1)
The affordable housing developer of a qualified housing development based upon the inclusion of low-income and/or very low-income affordable units must enter into an agreement with the County to maintain the continued affordability of the affordable units for 55 years (for rental units) or 30 years (applies to for-sale units), or a longer period if required by the construction or mortgage financing assistance program, mortgage insurance program, or rental subsidy program, as follows (Government Code Section 65915(c)(1)). The agreement shall establish specific compliance standards and specific remedies available to the County if such compliance standards are not met. The agreement shall, among other things, specify the number of lower-income affordable units by number of bedrooms; standards for qualifying household incomes or other qualifying criteria, such as age; standards for maximum rents or sales prices; the person responsible for certifying tenant or owner incomes; procedures by which vacancies will be filled and units sold; required annual report and monitoring fees; restrictions imposed on lower-income affordable units on sale or transfer; and methods of enforcing such restrictions.
(2)
Rental units. Rents for the low-income and very low-income affordable units that qualified the housing development for the density bonus pursuant to Section 11.30.040 shall be set and maintained at an affordable rent (Government Code Section 65915(c)(1)). The agreement shall set rents for the lower-income density bonus units at an affordable rent, as defined in California Health and Safety Code Section 50053. The agreement shall require that owner-occupied units be made available at an affordable housing cost, as defined in the Health and Safety Code Section 50052.5.
(3)
For-sale units. Owner-occupied low-income and very low-income affordable units that qualified the housing development for the density bonus pursuant to Section 11.30.040 shall be available at an affordable housing cost (Government Code Section 65915(c)(1)). The affordable housing developer of a qualified housing development based upon a very low- or low-income minimum affordable component shall enter into an equity-sharing agreement with the County or developer. The agreement shall be between the County and the buyer or the developer and the buyer if the developer is the seller of the unit. The County shall enforce the equity sharing unless it is in conflict with the requirements of another public funding source or law (Government Code Section 65915(c) (2)). The equity-sharing agreement shall include, at a minimum, the following provisions:
a.
Upon resale, the seller of the unit shall retain the value of any improvements, the down payment, and the seller's proportionate share of appreciation. The County shall recapture any initial subsidy, as defined in subparagraph (b), and its proportionate share of appreciation, as defined in subparagraph (c), which amount shall be used within five years for any of the purposes described in subdivision (e) of Section 33334.2 of the Health and Safety Code that promote homeownership.
b.
For purposes of this Section, the County's initial subsidy shall be equal to the fair-market value of the home at the time of initial sale minus the initial sale price to the very low-income household, plus the amount of any down payment assistance or mortgage assistance. If upon resale the market value is lower than the initial market value, then the value at the time of the resale shall be used as the initial market value.
c.
For purposes of this subdivision, the County's proportionate share of appreciation shall be equal to the ratio of the County's initial subsidy to the fair-market value of the home at the time of initial sale.
(4)
Senior units. At least 35 senior-citizen housing development units are maintained and available for rent or sale to senior citizens, as defined in Civil Code Section 51.3.
(c)
Moderate-income minimum affordable housing component.
(1)
The affordable housing developer of a qualified housing development based upon the inclusion of moderate-income affordable units in a common interest development must enter into an agreement with the County ensuring that:
a.
The initial occupants of the moderate-income affordable units that are directly related to the receipt of the density bonus are persons and families of a moderate-income household.
b.
The units are offered at an affordable housing cost (Government Code Section 65915(c)(2)).
(2)
The affordable housing developer of a qualified housing development based upon a moderate-income minimum affordable component shall enter into an equity-sharing agreement with the County or developer (Government Code Section 65915(c)(2)). The agreement shall be between the County and the buyer or the developer and the buyer if the developer is the seller of the unit. The County shall enforce the equity-sharing agreement unless it is in conflict with the requirements of another public funding source or law (Government Code Section 65915(c)(2)). The equity-sharing agreement shall include, at a minimum, the following provisions:
a.
Upon resale, the seller of the unit shall retain the value of improvements, the down payment, and the seller's proportionate share of appreciation. The County shall recapture any initial subsidy, as defined in subparagraph (b), and its proportionate share of appreciation, as defined in subparagraph (c), which amount shall be used within five years for any of the purposes described in Health and Safety Code Section 33334.2(e) that promote homeownership (Government Code Section 65915(c)(2)(A)).
b.
The County's initial subsidy shall be equal to the fair-market value of the unit at the time of initial sale minus the initial sale price to the moderate-income household, plus the amount of any down payment assistance or mortgage assistance. If upon resale the market value is lower than the initial market value, then the value at the time of the resale shall be used as the initial market value (Government Code Section 65915(c)(2)(B)).
c.
The County's proportionate share of appreciation shall be equal to the ratio of the County's initial subsidy to the fair market value of the unit at the time of initial sale (Government Code Section 65915(c)(2)(C)).
(3)
Minimum affordable housing component and childcare facility. If an additional density bonus or incentive is granted because a childcare facility is included in the qualified housing development, the affordable housing agreement shall also include the affordable housing developer's obligations pursuant to Subsection 11.30.060(a)(3) for maintaining a childcare facility, if not otherwise addressed through conditions of approval.
(d)
One hundred-percent affordable housing development.
(1)
At least 20 percent of the units, including both base density and density bonus units, in a qualified housing development shall be restricted to an affordable rent, as defined in Section 50053 of the Health and Safety Code, for at least 55 years.
(2)
The remaining units may be rented at an amount consistent with the maximum rent levels for a housing development that receives an allocation of state or federal low-income housing tax credits from the California Tax Credit Allocation Committee.
(a)
Requirements for density bonus or incentive for condominium conversion projects.
(1)
Applicant to convert apartments to a condominium project agrees to provide at least:
a.
33 percent of the total units of the proposed condominium project to persons and families of moderate-income households, or
b.
15 percent of the total units of the proposed condominium project to persons and families of low-income households.
(2)
If applicant agrees to pay for the reasonably necessary administrative costs incurred by the County pursuant to this Section, the County shall either:
a.
Grant a density bonus; or
b.
Provide other incentives of equivalent financial value (Government Code Section 65915.5(a)).
(b)
Definition of density bonus for condominium conversion projects. If the requirements of Subsection 11.30.150(a) are met, then the condominium conversion project will be entitled to an increase in units of 25 percent over the number of apartments, to be provided within the existing structure or structures proposed for conversion from apartments to condominiums (Government Code Section 65915.5(b)).
(c)
Pre-submittal preliminary proposals for density bonus or incentive for condominium conversion projects. Prior to the submittal of a formal request for subdivision map approval or other application for necessary discretionary approvals, an applicant to convert apartments to a condominium project may submit to the County a preliminary proposal for density bonus or other incentives of equivalent financial value.
(d)
Application for density bonus or incentives for condominium conversion projects. An applicant must submit a completed application provided by the County for a density bonus or for other incentives of equivalent financial value. The application must be submitted concurrently with the application for the condominium conversion project. The application must include the following:
(1)
All information and documentation necessary to establish that the requirements of Subsection 11.30.150(a) are met.
(2)
The proposal for a density bonus or the proposal for other incentives of equivalent financial value.
(3)
Site plans demonstrating the location of the units to be converted, the affordable units, the market-rate units, and the density bonus units in the condominium conversion project.
(4)
Any other information and documentation requested by the County to determine if the requirements of Subsection 11.30.150(a) are met.
(e)
Both the application for a density bonus or other incentives of equivalent financial value and the application for the condominium conversion must be complete before the application for a density bonus or other incentives of equivalent financial value will be considered.
(f)
Granting density bonus or incentive for condominium conversion projects.
(1)
Approval.
a.
If the requirements of Subsection 11.30.150(a) are met, the decision-making body for the condominium conversion project application is authorized to grant an application for a density bonus or other incentives of equivalent financial value, subject to Subsection 11.30.150(f)(2).
b.
Reasonable conditions may be placed on the granting of a density bonus or other incentives of equivalent financial value that are found appropriate, including, but not limited to, entering into an affordable housing agreement pursuant to Section 11.30.140 (Affordable Housing Agreement and Equity- Sharing Agreement), which ensures continued affordability of units to subsequent purchasers who are persons and families of moderate-income households or low-income households (Government Code Section 65915.5(a)).
(2)
Ineligibility. An applicant shall be ineligible for a density bonus or other incentives of equivalent financial value if the apartments proposed for conversion constitute a qualified housing development for which a density bonus, as defined in Section 11.30.040 (Qualifying Projects) or other incentives were provided (Government Code Section 65915.5(f)).
(3)
Decision on condominium conversion project. Nothing in this Section shall be construed to require the County to approve a proposal to convert apartments to condominiums (Government Code Section 65915.5(e)).
(a)
Occupancy. Prior to occupancy of an affordable unit, the household's eligibility for occupancy of the affordable unit must be demonstrated to the County. This provision applies throughout the restricted time periods pursuant to Section 11.30.140 (Affordable Housing Agreement and Equity-Sharing Agreement) and applies to any change in ownership or tenancy, including subletting, of the affordable unit.
(b)
Ongoing compliance. Upon request, the affordable housing developer must show that the affordable units are continually in compliance with this Chapter and the terms of the affordable housing agreement. Upon 30-day notice, the County may perform an audit to determine compliance with this Chapter and the terms of any agreement or restriction.
(c)
Enforcement. The County has the authority to enforce the provisions of this Chapter, the terms of affordable housing agreements and equity-sharing agreements, deed restrictions, covenants, resale restrictions, promissory notes, deed of trust, conditions of approval, permit conditions, and any other requirements placed on the affordable units or the approval of the qualified housing development. In addition to the enforcement powers granted in this Chapter, the County may, at its discretion, take any other enforcement action permitted by law, including those authorized by County ordinances. Such enforcement actions may include, but are not limited to, a civil action for specific performance of the restrictions and agreement(s), damages for breach of contract, restitution, and injunctive relief. The remedies provided for herein shall be cumulative and not exclusive and shall not preclude the County from seeking any other remedy or relief to which it otherwise would be entitled under law or equity.
This Chapter is intended to permit continuation of uses and continued occupancy and maintenance of structures that were legally established but do not comply with all of the current standards and requirements of this Code in a manner that does that does not impair public health, safety, or general welfare or conflict with the General Plan. These regulations also distinguish between non-conforming uses that are detrimental to public health, safety, or general welfare and those uses that are economically productive and compatible with surrounding development despite being inconsistent with applicable regulations and requirements.
(a)
The provisions of this Chapter apply to any lawfully established use or structure, as defined in the following section. Non-conforming uses and structures may only be continued, altered, or enlarged subject to the requirements of this Chapter.
(b)
The provisions of this Chapter also apply to non-conforming lots. Non-conforming lots may be developed according to the provisions of Section 11.31.040(c), Development on Non-conforming Lots.
(c)
Nothing contained in this Code shall be deemed to require any change in the plans, construction, or designated use of any building or structure for which a building permit has properly been issued, in accordance with the ordinances then in effect and upon which actual construction has been started prior to the effective date of this Code, provided that in all such cases, actual construction shall be diligently carried on until completion of the building or structure.
(a)
Definition. Any use, structure, or lot that was lawfully established prior to the adoption of this Code or any subsequent amendment to this Code or to the Official Zoning Map but that does not comply with all of the current standards and requirements of this Code shall be considered lawful non-conforming.
(1)
Non-conforming use. This term means any use of land or property that was lawfully established in compliance with all applicable ordinances and laws at the time of establishment and has remained in continuous existence but is not a use listed as permitted, accessory, or allowed subject to approval of a use permit in the district in which it is located. Non-conforming uses also include uses made non-conforming by the addition of a development standard (e.g., floor area limitation, restriction to certain floor level, minimum separation requirement) previously not required for such use, where such added standard is specified to be a condition of the use.
(2)
Non-conforming structure. This term means any building or structure that was lawfully established and in compliance with all applicable ordinances and laws at the time of establishment but no longer complies with all applicable development standards of the district in which it is located.
(3)
Non-conforming lot. Any lot that is smaller than the minimum lot area, width, depth, or frontage required by this Code shall be considered a lawful non-conforming lot if it is described in the official records on file in the office of the Yuba County Recorder as a lot of record.
(b)
Non-conformities. Non-conforming status for a use or structure may result from any inconsistency with the requirements of this Code, including but not limited to location, density, floor area, height, yards, usable open space, performance standards, or the lack of an approved conditional use permit, variance, or other required authorization.
(1)
Exceptions. A use or structure shall not be deemed non-conforming solely because it does not conform with the parking dimension standards, loading space requirements, planting area, or screening regulations of the district in which it is located or does not conform to the standards for the following building features: garage door location; garage door width; chimney height; cornices, eaves, and other ornamental features that exceed maximum projections into required yards.
(c)
Development on non-conforming lots. A non-conforming lot may be used as a building site subject to compliance with all applicable development standards (e.g., setbacks, height, etc.) of the district in which it is located. Deviations to standards shall not be allowed unless a variance, waiver, or modification to such standards is approved as provided for in this Code.
(a)
Non-conforming uses. Any lawful non-conforming use may be continued and maintained, provided that there be no alteration, enlargement, or addition to any building or structure housing the use; no increase in occupant load; nor any enlargement of the area, space, or volume occupied by or devoted to such use, except as otherwise provided in this Chapter. The right to continue a non-conforming use shall run with the land. No substitution, expansion, or other change in use is permitted except as provided in this Chapter.
(b)
Non-conforming structures. Any lawful non-conforming building or structure may be continued and maintained provided that there be no alteration, enlargement, or addition to the building or structure except as otherwise provided in this Chapter. The right to continue a non-conforming structure shall run with the land.
(c)
New development on a lot with a non-conforming use or structure. New development, including accessory structures, may occur on a lot with a non-conforming use or structure provided the new development conforms to the regulations of this Code and that such development does not alter any existing non-conforming structure or increase the degree of non-conformity.
Lawful non-conforming structures may be continued, maintained, and repaired in compliance with the requirements of this Section unless deemed to be a public nuisance because of health or safety conditions.
(1)
Maintenance and non-structural repairs. Maintenance, non-structural repairs and non-structural interior alterations are permitted to a non-conforming structure as long as the changes and improvements do not enlarge or extend the structure.
(2)
Structural repairs. Structural repairs that do not enlarge or extend the structure, including modification or repair of bearing walls, columns, beams, or girders, may be undertaken only if the Building Official determines that such modification or repair is immediately necessary to protect public health and safety, occupants of the non-conforming structure, or occupants of adjacent property, and if the cost of such work does not exceed 50 percent of the higher of the assessed value of the non-conforming structure as determined by the Yuba County Assessor or an appraisal performed by a certified appraiser for the applicant. If an applicant chooses not to submit an appraisal, the County Assessor's determination shall be used.
(3)
Non-conforming signs. Lawfully established signs that do not conform to the requirements of this Code may only be maintained in compliance with the requirements of Chapter 11.27, Signs.
Non-conforming structures may be altered, enlarged or extended if the addition conforms to the regulations applicable to the district where it is located and that such alterations or additions do not extend any existing non-conformity or increase the degree of non-conformity.
(1)
No expansion of area occupied by non-conforming use. An alteration to a non-conforming building or structure containing a non-conforming use shall not increase the area occupied by any non-conforming use, except as otherwise provided in Section 11.31.080, Expansion of Non-conforming Uses.
(2)
Accessory dwelling units. An Accessory Dwelling Unit in compliance with Section 11.32.030, Accessory Dwelling Units, may be developed on a lot that contains a non-conforming Single-Unit Dwelling.
(3)
Non-conforming signs. Lawfully established signs that do not conform to the requirements of this Code may only be altered in compliance with the requirements of Chapter 11.27, Signs.
A lawful non-conforming building or structure that is damaged or partially destroyed by fire, explosion, earthquake, or natural disaster that is not caused by an act or deliberate omission of a property owner, an owner's agent, or a person acting in concert with or on behalf of an owner may be restored or rebuilt subject to the following provisions:
(1)
Restoration when damage is 50 percent or less of value. If the cost of repair or reconstruction does not exceed 50 percent of the replacement cost, as determined by the Building Official, of the building or structure, replacement of the damaged portions of the building is allowed by right provided that the replaced portions are the same size, extent, and configuration as previously existed.
(2)
Restoration when damage exceeds 50 percent of value. If the cost of repair or reconstruction exceeds 50 percent of the replacement cost, as determined by the Building Official, of the building or structure, the land and building shall be subject to all of the requirements of this Code, except as provided below.
a.
Non-Residential structures. The Planning Commission may approve a Conditional Use Permit for the structure to be rebuilt to the same size, extent, and configuration as previously existed. In such cases any expansion or change to the previous structure must conform to the requirements of this Code.
b.
Residential structures. Any non-conforming residential structure may be reconstructed, restored, or rebuilt up to the size and number of dwelling units prior to the damage. The non-conforming use, if any, may be resumed subject to a Zoning Clearance in the case of Single-Unit Dwellings or a Conditional Use Permit approval in the case of other residential housing types, unless the decision-making authority finds that:
1.
The reconstruction, restoration, or rebuilding will be detrimental or injurious to the health, safety, or general welfare of persons residing or working in the neighborhood, or will be detrimental or injurious to property and improvements in the neighborhood; or
2.
The existing non-conforming use of the building or structure can be more appropriately moved to a zoning district where the use is permitted.
(3)
Building code compliance. Any reconstruction, restoration, or rebuilding undertaken pursuant to this Section shall conform to all applicable Building Code requirements.
(4)
Building permit. A building permit must be obtained within two years after the date of the damage or destruction.
No lawful non-conforming use may be expanded without the approval of a use permit, subject to the following requirements:
(1)
Within a conforming structure. A non-conforming use occupying a portion of a structure that conforms to this Code may expand the portion that it occupies with approval of a Use Permit in accord with Chapter 11.57, Use Permits.
(2)
Expansion within a structure that does not conform to this Code. A non-conforming use in a structure that does not conform to the requirements of this Code but does conform to the requirements of the Building Code may expand its occupancy and building floor area subject to approval of a Use Permit in accordance with Chapter 11.57, Use Permits, provided, however, that the expansion meets the requirements of this Code.
(3)
Expansion within a structure that does not conform to the Building Code. Any non-conforming use in a structure that does not conform to the Building Code may not expand the area it occupies until and unless the structure is brought into conformance with all applicable Building Code requirements.
No lawful non-conforming use shall be changed to a different use type or sub-classification without the approval of a use permit unless the new use is permitted by right. This requirement does not apply to a change of ownership, tenancy, or management where the new use is of the same use type and use classification, if applicable, as the previous use, as defined in Chapter 11.72, Use Classifications, and the use is not expanded or intensified.
(1)
Change from non-conforming to permitted use. Any non-conforming use may be changed to a use that is allowed by right in the district in which it is located and complies with all applicable standards for such use.
(2)
Addition of permitted uses and structures. Any parcel with a non-conforming use or structure may add new uses and structures that are permitted within the zone district so long as they meet all applicable development standards. Non-conforming residential uses that also have a commercial use located within the residential unit shall comply with the requirements of Section 11.32.140, Home Occupations.
(3)
Absence of permit. Any use that is non-conforming solely by reason of the absence of a use permit may be changed to a conforming use by obtaining a use permit pursuant to the requirements in Chapter 11.57, Use Permits.
(4)
Substitutions. The Zoning Administrator may allow substitution of a non-conforming use with another non-conforming use, subject to approval of a minor use permit. In addition to any other findings required by this Code, the Administrator must find that:
a.
The existing non-conforming use was legally established;
b.
The proposed new use would not preclude or interfere with implementation of the General Plan or any applicable adopted specific, area, or community plan;
c.
The proposed new use will not depress the value of nearby properties or create conditions that would impede their redevelopment or use in compliance with the General Plan;
d.
The proposed new use will be no less compatible with the purposes of the district and surrounding uses that comply with the requirements of this Code than the non-conforming use it replaces;
e.
The proposed new use will not be detrimental to the health, safety, peace, comfort, or general welfare of persons residing or working in the surrounding area or be detrimental or injurious to property and improvements of adjacent lots, the surrounding area, or the neighborhood because of noise, odors, dust, glare, vibrations, or other effects; and
f.
The proposed new use will comply with all applicable standards of this Code, there are special circumstances peculiar to the property and its relation to surrounding uses or to the district itself that would justify modification to applicable standards, or the impacts of the new use will be mitigated.
No non-conforming use may be resumed, reestablished, reopened or replaced by any other non-conforming use after it has been abandoned or vacated for a period of six months, unless the Planning Commission approves a conditional use permit after making all the following findings in addition to any other required findings.
(1)
The structure cannot be used for any conforming use because of its original design or because of lawful structural changes made for a previous non-conforming use;
(2)
The structure can be reasonably expected to remain in active use for a period of 20 years without requiring repairs or maintenance in excess of 50 percent of the replacement cost of the structure, as defined in this article, within any five year period; and
(3)
The continuation of the use or structure will not be incompatible with or detrimental to surrounding conforming uses.
The purpose of this Chapter is to establish standards for specific uses that are permitted or conditionally permitted in several or all districts. These provisions are supplemental standards and requirements intended to minimize the impacts of these uses on surrounding properties and protect the health, safety, and welfare of their occupants and of the general public.
The uses addressed in this Chapter shall be located only where allowed by the regulations of Division II, Zoning and Overlay Districts. The uses shall comply with any applicable standards for the district(s) in which they are located, as well as the standards of this Chapter. In the case of a conflict, the most stringent requirements apply.
(a)
Purpose. This Section establishes regulations and procedures for reviewing and permitting Accessory Dwelling Units through a ministerial process consistent with state law.
(b)
Applicability.
(1)
Applicable to all. Any construction, establishment, alteration, enlargement, or modification of an accessory dwelling unit or a junior accessory dwelling unit shall comply with the requirements of this Section and the County's building and fire codes. An accessory dwelling unit or junior accessory dwelling unit that conforms to the standards of this Section shall not be:
a.
Deemed to be inconsistent with the General Plan designation and zone for the parcel on which the accessory dwelling unit or junior accessory dwelling unit is located.
b.
Deemed to exceed the allowable density for the parcel on which the accessory dwelling unit or junior accessory dwelling unit is located.
c.
Considered in the application of any County ordinance, policy, or program to limit residential growth.
d.
Required to correct a nonconforming zoning condition, as defined in Chapter 11.72 (Use Classifications). This does not prevent the County from enforcing compliance with applicable building standards in accordance with Health and Safety Code Section 17980.12.
(2)
Accessory dwelling units. Accessory dwelling units are allowed on parcels zoned for single-family or multifamily residential uses where such a parcel includes a proposed or existing dwelling.
(3)
Junior accessory dwelling units. Junior accessory dwelling units are allowed on parcels zoned for single-family residential uses where such a parcel includes an existing single-family dwelling.
(c)
Permits and approval.
(1)
Ministerial action. Approval or denial of an Accessory Dwelling Unit or Junior Accessory Dwelling Unit is a ministerial action and subject to compliance with the standards in this Section and all other applicable codes.
(2)
Building permit. All accessory dwelling units or junior accessory dwelling units shall require a building permit, subject to all the standard application and processing fees and procedures that apply to building permits generally. No other planning-related permit is required.
(3)
The County shall issue a building permit within 60 calendar days from the date on which the County received a completed application, unless either:
a.
The applicant requests a delay, in which case the 60-day time period is put on hold for the period of the requested delay; or
b.
The application to create an Accessory Dwelling Unit or Junior Accessory Dwelling Unit is submitted with an application to create a new single-unit primary dwelling on the parcel. The City may delay acting on the permit application for the Accessory Dwelling Unit or Junior Accessory Dwelling Unit until the City acts on the permit application to create the new single-unit primary dwelling.
(d)
Types. An accessory dwelling unit approved under this Chapter shall be one of the following types:
(1)
Attached. An accessory dwelling unit that is created as a result of new construction that is attached to an existing or proposed primary dwelling, such as through a shared wall, floor, or ceiling. An attached accessory dwelling unit can also be constructed within an existing or proposed primary dwelling.
(2)
Detached. An accessory dwelling unit that is created in whole or in part from newly constructed space that is detached or separated from the primary dwelling. The detached accessory dwelling unit shall be located on the same parcel as the proposed or existing primary dwelling. Detached includes a second-story addition above an existing detached garage.
(3)
Converted. An accessory dwelling unit that meets the following requirements:
a.
Is located within the proposed or existing primary dwelling or accessory structure, including, but not limited to, attached garages, storage areas, or similar uses; or an accessory structure, including, but not limited to, studio, pool house, detached garage, or other similar structure. Such conversion may include an expansion of not more than 150 square feet beyond the same physical dimensions as the existing structure if the expansion is for the sole purpose of accommodating ingress and egress to the converted structure.
b.
The proposed conversion of a structure into an accessory dwelling unit that does not satisfy the requirements of Subsection (c)(i) of this Section shall either be defined by the director as an attached accessory dwelling unit, a detached accessory dwelling unit, or a junior accessory dwelling unit, or shall be defined as an accessory structure and not an accessory dwelling unit.
(4)
Junior accessory dwelling unit. A junior accessory dwelling unit is a unit that meets all of the following characteristics:
a.
Is no more than 500 square feet in size and is contained entirely within a single-unit primary dwelling. A junior accessory dwelling unit may include separate sanitation facilities or may share sanitation facilities with the existing structure.
b.
Is located and contained entirely within a proposed single-unit primary dwelling or entirely within an existing single-unit primary dwelling.
c.
Has a separate entrance from the main entrance to the proposed or existing single-unit dwelling.
d.
Has a bathroom that is either shared with or separate from those of the primary dwelling.
e.
Includes an efficiency kitchen.
(e)
Number of accessory dwelling units per lot or parcel in zones which allow single-family homes. The following number of accessory dwelling units apply in all Zoning Districts that allow single-family homes as a permitted use:
(1)
One attached or detached accessory dwelling unit shall be allowed on a parcel with one proposed or existing primary dwelling.
(2)
One junior accessory dwelling unit shall be allowed on a parcel with one proposed or existing primary dwelling.
(3)
Up to one attached or detached accessory dwelling unit and one junior accessory dwelling unit shall be allowed on a single parcel.
(f)
Type and number of accessory dwelling units per lot or parcels which allow multifamily homes. The following apply to accessory dwelling units in all Zoning Districts that allow multifamily homes as a permitted use:
(1)
Attached accessory dwelling units:
a.
At least one attached or up to 25 percent of the existing multifamily units shall be allowed as attached accessory dwelling units in an existing multifamily development.
b.
Attached accessory dwelling units in a multifamily development may be created only through the conversion of parts of existing multifamily dwelling structures that are not used as livable space, including, but not limited to, storage rooms, boiler rooms, passageways, attics, basements, or garages.
(2)
Detached accessory dwelling units. Up to two detached accessory dwelling units shall be allowed on a parcel with one or more multifamily structures, subject to compliance with the development standards for detached accessory dwelling units in this Chapter.
(g)
Attached or converted accessory dwelling unit development standards.
(1)
Location, size, setbacks, and height: The following standards apply to attached accessory dwelling units:
a.
Location. Shall be located on the same lot or parcel as a primary dwelling. An attached accessory dwelling unit can be created by converting a portion of an existing primary dwelling, by constructing a new primary dwelling with an integral accessory dwelling unit, or by constructing an addition to an existing primary dwelling.
b.
Size. The total floor area of an attached accessory dwelling unit shall not exceed 850 square feet for a one-bedroom unit or 1,000 square feet for an accessory dwelling unit that provides more than one bedroom. If there is an existing primary dwelling, the total floor area of an attached accessory dwelling unit shall not exceed 50 percent of the existing primary dwelling, with a maximum increase in floor area of 1,200 square feet. These limits do not include up to 150 square feet of area added to the primary dwelling for the sole purpose of providing access to the accessory dwelling unit.
c.
Setbacks.
1.
None, if existing living area, garage, or other accessory structure is converted to an accessory dwelling unit (or portion of accessory dwelling unit) with the same dimensions as the existing structure.
2.
Five feet from the side and rear lot lines shall be required for an accessory dwelling unit that is constructed above a garage.
d.
Height. Per the zoning district standard for the primary dwelling.
e.
Access. An attached accessory dwelling unit shall have direct exterior access separate from the main entrance to the primary dwelling.
f.
Minimum requirements. An accessory dwelling unit shall include at least one bathroom, one kitchen, and one living/dining room.
g.
Garage allowances. Limited to one attached garage, which shall be limited to 50 percent of the accessory dwelling unit conditioned/unconditioned floor area.
h.
Buildup and underfloor regulations. Buildup/underfloor space areas shall not have any improved floor area. Buildup/underfloor areas shall be limited to one light and one plug and may be used as space for equipment serving the accessory dwelling unit.
(2)
Sale of unit. An accessory dwelling unit may be rented, but it shall not be offered for sale apart from the principal unit, nor shall the lot or parcel be subdivided to create a separate building site unless approved pursuant to the subdivision ordinance of this County. No accessory dwelling unit may be offered for rental terms of less than 30 days for accessory dwelling units permitted on or after January 1, 2020. Notwithstanding Section 11.32.030(i), the County may, by ordinance, allow an accessory dwelling unit to be sold or conveyed separately from the primary residence to a qualified buyer if all the following apply:
a.
The property was built or developed by a qualified nonprofit corporation.
b.
There is an enforceable restriction on the use of the land pursuant to a recorded contract between the qualified buyer and the qualified nonprofit that satisfies all the requirements of paragraph (10) of subdivision (a) of Section 402.1 of the Revenue and Taxation Code.
c.
The property is held pursuant to a recorded tenancy in common agreement that includes all the following provisions:
1.
The agreement allocates to each qualified buyer an undivided, unequal interest in the property based on the size of the dwelling each qualified buyer occupies.
2.
A repurchase option that requires the qualified buyer first offer the qualified nonprofit corporation the opportunity to buy the property if the buyer desires to sell or convey the property.
3.
A requirement that the qualified buyer occupy the property as the buyer's principal residence.
4.
Affordability restrictions on the sale and conveyance of the property that ensure the property will be preserved for low-income housing for 45 years for owner-occupied housing units and will be sold or resold to a qualified buyer.
d.
A grant deed naming the grantor and grantee and describing the property interests being transferred shall be recorded in the County in which the property is located. A Preliminary Change of Ownership Report shall be filed concurrently with this grant deed pursuant to Section 480.3 of the Revenue and Taxation Code.
e.
Notwithstanding any provisions in this Chapter, if requested by a utility providing service to the primary residence, the accessory dwelling unit shall have a separate water, sewer, or electrical connection to that utility.
(h)
Detached accessory dwelling unit development standards.
(1)
Location, size, setbacks, and height. The following standards apply to detached accessory dwelling units:
a.
Location. Shall be located on the same lot or parcel as a primary dwelling and be detached from the primary dwelling unit.
b.
Size. No minimum size, except as needed to conform with the requirements for an efficiency unit, as defined in the Building Code. A detached accessory dwelling unit shall not exceed 850 square feet for a one-bedroom unit or 1,200 square feet for an accessory dwelling unit that provides more than one bedroom. The living area includes all conditioned and unconditioned space in the detached accessory dwelling unit.
c.
Setbacks.
1.
Front yard setback: Per the zoning district standard for the primary dwelling.
2.
Side yard: Four feet minimum.
3.
Rear yard: Four feet minimum.
d.
Height. 16 feet for new structures built specifically as an accessory dwelling unit. Existing structures taller than 16 feet can be converted to an accessory dwelling unit consistent with the requirements of this Chapter.
e.
Minimum requirements. An accessory dwelling unit shall include at least one bathroom, one kitchen, and one living/dining room.
f.
Garage allowances: Limited to one attached garage, which shall be limited to 50 percent of the accessory dwelling unit conditioned/unconditioned floor area.
g.
Buildup and underfloor regulations. Buildup/underfloor space areas shall not have any improved floor area. Buildup/underfloor areas shall be limited to one light and one plug and may be used as space for equipment serving the accessory dwelling unit.
h.
Maximum floor area. The floor area of the Second Dwelling Unit for an attached unit shall not exceed 30 percent of the primary dwelling's living area. In addition, the floor area of a detached Second Dwelling Unit shall not exceed 1,200 square feet. A larger floor area may be permitted upon approval of an Administrative Permit.
(2)
Sale of unit. An accessory dwelling unit may be rented, but it shall not be offered for sale apart from the principal unit, nor shall the lot or parcel be subdivided to create a separate building site unless approved pursuant to the subdivision ordinance of this County. No accessory dwelling unit may be offered for rental terms of less than 30 days for accessory dwelling units permitted on or after January 1, 2020. Notwithstanding Section 11.32.030.(i), the County may, by ordinance, allow an accessory dwelling unit to be sold or conveyed separately from the primary residence to a qualified buyer if all the following apply:
a.
The property was built or developed by a qualified nonprofit corporation.
b.
There is an enforceable restriction on the use of the land pursuant to a recorded contract between the qualified buyer and the qualified nonprofit that satisfies all the requirements of paragraph (10) of subdivision (a) of Section 402.1 of the Revenue and Taxation Code.
c.
The property is held pursuant to a recorded tenancy in common agreement that includes all the following provisions:
1.
The agreement allocates to each qualified buyer an undivided, unequal interest in the property based on the size of the dwelling each qualified buyer occupies.
2.
A repurchase option that requires the qualified buyer first offer the qualified nonprofit corporation the opportunity to buy the property if the buyer desires to sell or convey the property.
3.
A requirement that the qualified buyer occupy the property as the buyer's principal residence.
4.
Affordability restrictions on the sale and conveyance of the property that ensure the property will be preserved for low-income housing for 45 years for owner-occupied housing units and will be sold or resold to a qualified buyer.
d.
A grant deed naming the grantor and grantee and describing the property interests being transferred shall be recorded in the County in which the property is located. A Preliminary Change of Ownership Report shall be filed concurrently with this grant deed, pursuant to Section 480.3 of the Revenue and Taxation Code.
e.
Notwithstanding any provisions in this Chapter, if requested by a utility providing service to the primary residence, the accessory dwelling unit shall have a separate water, sewer, or electrical connection to that utility.
(i)
Junior accessory dwelling unit development standards.
(1)
Location, size, setbacks, height. The following standards apply to junior accessory dwelling units:
a.
Location. Shall be located on the same lot or parcel as a primary dwelling and be attached to the primary dwelling by at least one wall or by a ceiling. The junior accessory dwelling unit may be located above or below the primary dwelling.
b.
Size. Maximum of 500 square feet of living area. Up to 150 square feet of building space may be added to the primary dwelling for the sole purpose of providing access to the junior accessory dwelling unit; this shall not count toward the maximum area for the junior accessory dwelling unit.
c.
Setbacks. If the primary dwelling is expanded to create the junior accessory dwelling unit, the addition may maintain the same setbacks as the existing structure, unless a different setback is required by the Fire or Building codes.
(2)
Access. A junior accessory dwelling unit shall have direct exterior access separate from the main entrance to the primary dwelling.
(3)
Kitchen. Each junior accessory dwelling unit shall include an efficiency kitchen.
(4)
Utilities.
a.
A junior accessory dwelling unit shall not be considered a separate or new dwelling unit for the purposes of calculating connection fees or capacity charges for utilities, including water, sewer, or power service, or impact fees.
b.
No new or separate utility connection between the junior accessory dwelling unit and the utility shall be required, although the property owner may voluntarily install a submeter for the junior accessory dwelling unit.
c.
Any utility charges or fees shall be consistent with state law.
(5)
Parking. No additional off-street parking is required for the junior accessory dwelling unit.
(6)
Garage allowances. Limited to one attached garage, which shall be limited to 50 percent of the accessory dwelling unit conditioned/unconditioned floor area.
(7)
Buildup and underfloor regulations. Buildup/underfloor space areas shall not have any improved floor area. Buildup/underfloor areas shall be limited to one light and one plug and may be used as space for equipment serving the junior accessory dwelling unit.
(8)
Owner-occupancy requirements.
a.
A person with legal or equitable title to the primary dwelling shall reside on the property in either the primary dwelling or junior accessory dwelling unit as that person's legal domicile and permanent residence.
b.
The owner occupancy requirement does not apply if the property is entirely owned by a governmental agency, land trust, or non-profit housing organization.
c.
Prior to issuance of a building permit for a junior accessory dwelling unit, a deed restriction shall be recorded in the chain of title of the primary single-unit property. The form of the deed restriction shall be approved by the City Attorney and shall provide that the junior accessory dwelling units not be sold separately from the primary dwelling.
d.
The deed restriction shall run with the land and shall be enforced against future property owners.
(9)
Connection fee. A connection fee shall not be collected for water, sewer, power, or other utility for a junior accessory dwelling unit.
(10)
Safety requirements. For purposes of fire or life-protection regulations, a junior accessory dwelling unit shall not be considered a separate or new dwelling unit.
(11)
Deed restrictions. Prior to the issuance of a building permit for a junior accessory dwelling unit, the owner of the lot or parcel on which it is to be constructed shall record a deed restriction in a form satisfactory to the County attorney that includes the following:
a.
A prohibition of the sale of the junior accessory dwelling unit separately from the sale of the primary residence, including a statement that the deed restriction may be enforced against future purchasers; and
b.
A restriction on the size and attributes of the junior accessory dwelling unit that conforms with Section 65852.2 of the Government Code that regulates accessory dwelling units.
(12)
Inspections. No subdivision of this Development Code shall be interpreted to prohibit the requirement of an inspection, including the imposition of a fee for that inspection, to determine if a junior accessory dwelling unit complies with applicable development standards.
(j)
Additional standards applicable to all accessory dwelling units.
(1)
Conversion setback. No setback shall be required for an existing living area, garage, or other accessory structure that is converted to an accessory dwelling unit (or portion of accessory dwelling unit) with the same dimensions as the existing structure.
(2)
Certificate of occupancy. The County shall not issue a certificate of occupancy for an accessory dwelling unit before the certificate of occupancy is issued for the primary residence.
(3)
Encroachments. Except as otherwise provided in this Chapter, the accessory dwelling unit shall not increase an existing or create a new encroachment upon any required front, side, or rear yard space; increase building height or coverage beyond the standards prescribed for the district in which it is located; or decrease the distance between structures that is required.
(4)
Passageways and entrances. No passageway or entrance within view of a street shall be required in conjunction with the construction of an accessory dwelling unit.
(5)
Fire sprinklers. Fire sprinklers are not required for accessory dwelling units if they are not required by the building code for the proposed single-family or multifamily residence. Fire sprinklers would not be required for the existing primary structure unless triggered by some other building code or fire code requirement.
(6)
Utility connections. Notwithstanding any provision to the contrary contained in this Code (or in any code adopted by reference in this Code), an accessory dwelling unit may be connected to a district sewerage system through a side sewer shared with the existing residence on the site, or it may have its own side sewer. In either case, the connection of the accessory dwelling unit to the district sewerage system is subject to the requirements of this Chapter 11.32.030, including obtaining applicable permits, paying connection charges (where applicable), and paying user charges. Accessory dwelling units shall not be considered new residential uses for the purposes of calculating connection fees or capacity charges for utilities, including water, sewer, and other utilities as defined, unless the accessory dwelling unit was constructed with a new single-family dwelling. Separate metering of utilities is not required for accessory dwelling units unless they are constructed with a new primary dwelling.
(7)
Well or septic systems. Where a well or septic system is used for the proposed ADU, approval by the Environmental Health Department will be required, as allowed by Government Code Section 65852.2(a)(1)(D)(ix). An on-site sewage treatment, conveyance, and disposal system will be required by the County Code, Chapter 7.07.
(8)
Manufactured housing. Except as otherwise provided in this Chapter, accessory dwelling units shall comply with all uniform building codes adopted, and all other applicable laws, rules, and regulations. An accessory dwelling unit may consist of manufactured housing on a permanent foundation if such housing is permitted in the district in which it is proposed to be located and meets the standards for such housing.
(9)
Permit denial exemption. No other local ordinance, policy, or regulation shall be the basis for the delay or denial of a building permit, administrative use permit, minor-use permit, or conditional use permit.
(10)
Transfer of sale. Any covenant, restriction, or condition contained in any deed, contract, security instrument, or other instrument affecting the transfer or sale of any interest in a planned development, and any provision of a governing document, that either effectively prohibits or unreasonably restricts the construction or use of an accessory dwelling unit or junior accessory dwelling unit on a lot zoned for single-family residential use that meets the requirements of Section 65852.2 or 65852.22 of the Government Code, is void and unenforceable.
(11)
Development fees. Fees will be charged for the construction of accessory dwelling units, in accordance with Chapter 13.50 of the Yuba County Development Code and state law.
a.
The County, special district, or water corporation shall not impose any impact fee upon the development of an accessory dwelling unit less than 750 square feet.
b.
Any impact fees charged for an accessory dwelling unit of 750 square feet or more shall be charged proportionately in relation to the square footage of the primary dwelling unit.
c.
School districts are authorized but do not have to levy impact fees for accessory dwelling unit greater than 500 square feet pursuant to Section 17620 of the Education Code. Accessory dwelling units less than 500 square feet are not subject to school impact fees.
(k)
Code enforcement. The code enforcement officer may conduct a review of accessory dwelling units within the County. The code enforcement officer or designee may enforce all provisions of this Code and provisions of state law pertaining to the development, occupation, and maintenance of residential properties and accessory dwelling units, pursuant to the following provisions:
(1)
Reporting. A code enforcement officer may report:
a.
A change in ownership of the lot or parcel of land on which the residential units are situated.
b.
A change in the occupancy of the residential units that is not in compliance with this Section.
(2)
Violation. A code enforcement officer may issue to an owner of an accessory dwelling unit a notice to correct a violation of any provision of any building standard or any failure to comply with this Section. The code enforcement officer shall include in that notice a statement that the owner of the unit has a right to request a delay in enforcement pursuant to the following findings:
a.
The accessory dwelling unit was built before January 1, 2020.
b.
The accessory dwelling unit was built on or after January 1, 2020; however, at the time the unit was built, the County had a noncompliant accessory dwelling unit ordinance, but the unit is compliant at the time the request is made.
(3)
Violation correction. The owner of an accessory dwelling unit that receives a notice to correct violations or abate nuisances, as described in Section 11.67, may submit an application to the County requesting that enforcement of the violation be delayed for up to five years on the basis that correcting the violation is not necessary to protect health and safety.
a.
The County shall grant an application described in Section 11.67 if it is determined that correcting the violation is not necessary to protect health and safety. In making this determination, the Zoning Administrator shall consult with the code enforcement officer, building official, and/or the State Fire Marshal or designee pursuant to Section 13146 of the Health and Safety Code.
b.
The County shall not approve any applications pursuant to this Section on or after January 1, 2030. However, any delay that was approved by the County before January 1, 2030, shall be valid for the full term of the delay that was approved at the time of the initial approval of the application, pursuant to Section 11.67. If upon such review it appears that in a particular case a violation of the provisions of this Chapter has occurred, the code enforcement officer may take such action as deemed necessary by the County attorney to correct any violation.
(a)
Applicability. Housing for agricultural employees or immediate family of those employed for the exclusive purpose of agricultural pursuits either on the premises or off-site shall be designed, operated and located according to the standards of this Section except as provided below.
(1)
Housing for six or fewer persons. A residential structure providing accommodation for six or fewer persons shall be considered a single-unit residential use and shall be allowed by right in any district that permits single-unit residential uses.
(2)
Residential development in non-agricultural districts. Multi-Unit Residential, Boarding Facility, or Single-Room Occupancy uses located in a non-agricultural district. These housing types, whether designed for and occupied by farm workers or other residents, shall be subject to the same use and development regulations as they otherwise would in the applicable districts.
(b)
Number of housing units allowed. No more than 36 beds in a group quarters or up to 12 dwelling units or spaces designed for use by a single family or household (up to six agricultural employees) are allowed on an individual parcel. The Planning Commission may authorize additional beds or units through a Conditional Use Permit where the Planning Commission makes specific findings that document the necessity for the number of approved units. For sites with a combination of group quarters or individual units the following combinations are permitted without approval of a Conditional Use Permit:
(1)
Eighteen beds and six single household units (50:50 percent); or
(2)
Twenty-seven beds and three single household units (75:25 percent); or
(3)
Nine beds and nine single household units (25:75 percent).
(c)
Development standards.
(1)
Agricultural employee verification. As part of the building permit application, an agricultural employee verification form shall be submitted to the Planning Department. The verification form shall include information regarding the housing type, number of dwelling units or beds, type of residency (permanent, temporary, or seasonal), entity responsible for housing maintenance and upkeep, copy of permit to operate from the California Department of Housing and Community Development if applicable, and notarized statement that the housing is for agricultural employees and their families as defined in the County Code.
(2)
All housing, whether permanent or temporary, shall meet the development standards of the district and be subject to all applicable building, fire, and health codes.
a.
Location. Agricultural employee housing shall be located at least 50 feet from barns, pens or other structures that house livestock. The housing shall be located off of prime and productive agricultural land, unless no other alternative locations exist on the site.
(3)
Housing shall be constructed and maintained to conform to the State Department of Housing and Community Development regulations for employee housing. Housing for five or more agricultural employees is subject to the permitting requirements of the California Housing Employee Act. The property owner shall obtain and maintain all required permits from the California Housing and Community Development (HCD) Department.
(4)
Mobile homes used specifically for such housing shall be maintained in compliance with the applicable requirements of the Manufactured Housing Act (Health and Safety Code Section 18000, et seq.). For purposes of zoning, manufactured homes utilized for agricultural labor housing shall not be considered a mobile home park.
(5)
Temporary housing facilities. The use of tents, recreational vehicles, mobile camping equipment or other temporary facilities approved for human habitation for agricultural employees may be allowed upon approval of an Administrative Use Permit. In addition to the criteria stated above, temporary housing facilities for agricultural employees shall meet the following requirements:
a.
Use of temporary housing facilities is limited to a maximum duration of 90 days per calendar year in one location (cumulative) unless a longer time period is approved through approval of an administrative use permit;
b.
Shall be located a minimum of 100 feet from public rights-of-way, property lines, and season or permanent water ways;
c.
Shall obtain clearances from the Environmental Health Department for the provisions of water; waste water, solid waste; and any proposed food facilities.
It is the intent of the following regulations to keep and maintain domestic, farm/livestock, and exotic animals on their private property in a manner that will protect the health, safety and welfare or nearby residents, and to protect the health, safety, and welfare of animals.
(1)
Regulations pertaining to livestock.
a.
Enclosure location (county-wide). No barn, coop, stable, or corral shall be located closer than 50 feet to any abutting dwelling, except for caretaker quarters and shall be a minimum of 100 feet from any well or year round creek or river.
1.
The raising and keeping of animal livestock is prohibited within the front yards of properties within the valley growth boundary.
b.
Minimum parcel size. Within the valley growth boundary, parcels shall be a minimum of one acre in size.
1.
Educational project exemption. Temporary education projects, including, but not limited to FFA, 4-H, and school projects, conducted by students (living at the subject property) through the twelfth grade plus one year thereafter and under the direct supervision of a qualified, responsible adult advisor or instructor may apply for a waiver to the minimum lot size or zone district which do not otherwise permit the raising and keeping of such animals pursuant to Chapter 11.60, Waivers and Modifications. The Zoning Administrator may only approve a waiver after consultation with the agricultural commissioner and a determination that adverse impacts to neighboring residents are effectively mitigated. Waivers shall be valid for a 12-month period and may be renewed annually.
2.
The raising of animals on a residential parcel located within the valley growth boundary that has not established a primary use is not permitted.
c.
Maximum number of animals. Within the valley growth boundary, the number of animals permitted is based on the zone district, acreage of the site and type of animals calculated by animal unit equivalent.
1.
Animal unit (AU). For purposes of this Code, an animal unit is a unit of measure indicating the ability of land to support a specific density of livestock as well as maintain the intended character of the zone district. For calculation purposes only livestock are counted. See Table 11.32.050-(1)c.1. for animal calculations.
2.
Specific type of animals permitted. The following requirements apply to the keeping or raising of livestock. More than one type of animal may be kept on a single site so long as the number of animal units per acre and maximum number of animal units per parcel is not exceeded. For example a parcel designated as RS that is one acre in size is allowed a total of one animal unit equivalent (1 AU) which could be comprised of one horse (1 AU) or two sheep and 13 chickens (1 AU), or two goats, eight chickens, and eight rabbits (1 AU).
3.
Exceptions. Increases in the maximum number of animal units allowed per acre or parcel may be allowed through approval of a waiver when the increase is less than 25 percent, an Administrative Use Permit for increases up to 50 percent, or a minor conditional use permit for increases greater than 50 percent.
i.
The decision-making authority may only approve an increase in the number of livestock after consultation with the Agricultural Commissioner, Environmental Health Department and a determination that adverse impacts to neighboring residents are effectively mitigated.
4.
Fuel reduction (brush and vegetation). The temporary use of sheep and goats to reduce the amount of on-site brush and vegetation is permitted on sites greater than one acre in size, but shall not exceed a total of two weeks within any 12 month period.
d.
Operation and maintenance standards (county-wide).
1.
Odor and vector control. Except parcels designated as AE or AI, pastures agricultural accessory structures and animal enclosures, including but not limited to pens, coops, cages, barns, corrals, paddocks and feed areas shall be maintained free from excessive litter, garbage and the accumulation of manure, so as to discourage the proliferation of flies, other disease vectors, and offensive odors. Sites shall be maintained in a neat and sanitary manner.
2.
Erosion and sedimentation control. In no case shall any person allow keeping of livestock to cause significant soil erosion, or to produce sedimentation on any public road, adjoining property, or in any drainage channel.
3.
If the keeping of livestock on the site is not maintained in compliance with the provisions of this Section it shall be deemed a public nuisance and may be subject to abatement as set forth in Section 11.67.020, Enforcement of this Code and Titles VII (Health and Sanitation) and VII (Public Peace and Safety) of the County Code.
(2)
Regulations pertaining to outdoor aviaries. Within the valley growth boundary, the keeping of domestic or exotic birds primarily, other than those classified as livestock (game foul and chickens, squab, ostriches, emus, peacocks, turkeys, and similar birds), is permitted pursuant to Table 11.32.050-(2)b. Any species of domestic or exotic bird(s) (except livestock) which is raised or kept inside of a residence is considered a household pet and is otherwise regulated by the provisions in Subsection 11.32.050(6) of this Section. The keeping of imported birds may also require approval by: U.S. Department of Agriculture, Fish and Wildlife Service, U.S. Department of Public Health, California Department of Fish and Wildlife, and/or the California Department of Food and Agriculture, in addition to any approval required by this Code.
a.
Bird classes.
1.
Class 1. Canaries, parakeets, finch and similar small songbirds.
2.
Class 2. Cockatiels, quail, doves, pigeons, and similar types of birds.
3.
Class 3. Cockatoos, parrots and similar types of birds.
b.
Number of birds permitted. Outdoor aviaries are permitted in all agricultural districts and as an incidental and accessory use to a permitted residence when no commercial activity is involved in all applicable zone districts that allow for a residence. The number of birds allowed is based on the net acreage of the parcel the aviary is located on.
c.
Exceptions. Increases in the maximum number of birds is allowed through approval of a waiver when the increase is less than 25 percent, an Administrative Use Permit for increases up to 50 percent, or a Minor Conditional Use Permit for increases greater than 50 percent.
d.
Operation and maintenance standards. The standards specified in Subsection 11.32.050.(1)d. above shall apply to outdoor aviaries.
(3)
Regulations pertaining to apiaries/bee keeping. The keeping of bees shall not be permitted within the valley growth boundary except on existing agricultural properties. Where bees are permitted they are subject to the requirements of the Agricultural Commissioner.
(4)
Regulations pertaining to wild animals (county-wide). The keeping of wild animals shall be limited to wildlife sanctuaries or wildlife rehabilitations facilities. All such facilities shall obtain approval of an administrative use permit and any required licenses from Yuba County Animal Care Services and the California Department of Fish and Wildlife.
(5)
Regulations pertaining to household pets (county-wide). When conducted within the house or within a residential accessory structure on the same site, the keeping of common household pets, including but not limited to: dogs, cats, guinea pigs, hamsters, rabbits, domestic or exotic birds (except livestock breeds), non-poisonous reptiles and amphibians, fish, and/or the keeping of other small domesticated or caged small animals incidental and accessory to a permitted residential use when no commercial activity is involved is permitted in all applicable zone districts.
a.
Operation and maintenance standards.
1.
Odor and vector control. The premises where household pets are kept shall be maintained in a clean and sanitary manner by the removal of waste, litter or garbage, so as to discourage the proliferation of flies, other disease vectors, and offensive odors.
2.
Erosion and sedimentation control. In no case shall any person allow animal keeping to cause significant soil erosion, or to produce sedimentation on any public road, adjoining property, or in any drainage channel. In the event such sedimentation occurs, the keeping of animals outdoors on the site shall be deemed a public nuisance and may be subject to abatement as set forth in Section 11.67.020, Enforcement of this Code and Titles VII (Health and Sanitation) and VII (Public Peace and Safety) of the County Code.
3.
Nuisance declared. Where it is found by the Environmental Health Director that the keeping of household pets in such a number or manner is injurious to the health, safety, or welfare of the inhabitants of the home, the household pets, or adjacent residences, the Environmental Health Director may through written findings declare the keeping of such pets a public nuisance subject to the procedures listed in Chapter 11.67, Enforcement and Abatement Procedures.
4.
Hobby and commercial kennels. Hobby and commercial kennels are also subject to any permits and requirements established by the Environmental Health Department.
b.
Dogs. The keeping of dogs and similar animals (pygmy goats, pot-bellied pigs, etc.) for personal purposes (pets) including the temporary fostering of such animals is permitted in all zone districts that allow for a residence or where guard dogs are permitted. The number of dogs and similar animals permitted is based on the zone district as identified in Table 11.32.050(5)b. of this Chapter. Dogs kept for personal purposes are limited to no more than one litter per 12-month period regardless of the number of dogs owned/permitted. The breeding of dogs in excess of one litter per 12-month period is considered a commercial kennel and is only allowed in those districts that allow for commercial kennels subject to any required permits including but not limited to a kennel permit from the Environmental Health Department.
1.
Dogs over four months of age in excess of the number principally permitted may be allowed as a hobby kennel with approval of an administrative use permit.
2.
The keeping of dogs over four months of age in excess of the number allowed as a hobby kennel will be considered a commercial kennel and is only allowed in those districts that allow for kennels subject to any required permits.
3.
The keeping of dogs and similar animals owned by others, or offering training, grooming, therapy, boarding or other services is considered a commercial kennel or pet service and is only allowed in those districts where kennel, pet grooming, and animal services are listed as a permitted or conditionally permitted use.
4.
Agricultural operations. Dogs used in herding livestock or other permitted agricultural use are excluded from the provisions in Table 11.32.050(5)b. below.
5.
Guard dogs. In non-residential areas, up to two guard dogs are permitted per business establishment. Additional guard dogs may be authorized through a waiver from the Zoning Administrator where it can be demonstrated that additional guard dogs are needed to adequately secure the facility.
(6)
Non-conforming animal keeping. The keeping of types or numbers of animals not allowed in a particular zoning district may be continued provided that:
a.
The number of animals existing on the site was legally permitted prior to the adoption of this Development Code.
b.
The number of animals legally existing on the site on the effective date of this Development Code shall not be increased unless allowed pursuant to the requirements of this Section.
c.
New offspring of legally existing animals may be retained on-site until four months of age or until weaned, after which the new animals are to be removed.
d.
Deceased animals shall not be replaced.
e.
Animals that are relocated to another location for a period greater than 90 days shall not be replaced or brought back to the non-conforming site.
f.
Owners of non-conforming animals shall also be subject to the management practices of this Chapter.
Automobile/vehicle sales and service establishments shall be located, developed and operated in compliance with the following standards:
(1)
Landscaping and screening. Within the valley growth boundary, landscaping and screening shall be provided as follows:
a.
A masonry wall at least six feet in height shall be provided along all lot lines adjacent to a residential district for parcels located in the valley growth boundary.
b.
A landscaped planter with a minimum inside width of eight feet and enclosed within a six-inch-high curb shall be provided along the front and street side property lines, except for vehicular circulation openings. A landscaping buffer with a minimum inside width of at least six feet shall be provided along all other property lines that abut a residential district.
(2)
Application review and findings for approval. The decision-making authority shall only approve an automobile/vehicle sales and service facility if it finds that:
a.
The project is designed so that form and scale are harmonious and consistent with the character of the specific site, the adjacent uses and structures, and the surrounding neighborhood.
b.
The site design, including the location and number of driveways, will promote safe and efficient on-site and off-site traffic circulation.
c.
Service bay openings are designed to minimize the visual intrusion on surrounding streets and properties.
d.
Lighting is designed to be low-profile, indirect or diffused and to avoid adverse impacts on surrounding uses.
e.
The washing facility will not have an adverse impact on water supply and quality.
(3)
Conditions of approval. Conditions of approval may include limitations on operational characteristics of the use; restrictions on outdoor storage and display, location of pump islands, canopies and service bay openings; and/or requirements for buffering, screening, lighting, planting areas, or other site elements, in order to avoid adverse impacts on adjacent lots or the surrounding area.
(4)
Automobile/vehicle sales and leasing. Automotive servicing or repair is permitted as an accessory use for automobile/vehicle dealers that offer maintenance and servicing of the type of vehicles sold on site.
(5)
Automobile/vehicle service and repair, major and minor. Major and minor automobile/vehicle service and repair uses, as well as any other uses, such as auto dealerships or service stations, that perform auto servicing as an accessory activity, are subject to the following standards:
a.
Noise. All body and fender work or similar noise-generating activity shall be conducted within an enclosed building with sound-attenuating construction to absorb noise. Air compressors and other service equipment shall be located inside a building or enclosure to attenuate noise unto adjacent properties.
b.
Work areas. All work shall be conducted within an enclosed building except: pumping motor vehicle fluids, checking and supplementing various fluids, and mechanical inspection and adjustments not involving any disassembly.
c.
Vehicle storage. Vehicles being worked on or awaiting service or pick-up shall be stored within an enclosed building or in a parking lot on the property that is screened in compliance with Section 11.19.080, Screening.
d.
Litter. The premises shall be kept in an orderly condition at all times. No used or discarded automotive parts or equipment or permanently disabled, junked, or wrecked vehicles may be stored outside a building.
(6)
Automobile/vehicle washing. Automobile/vehicle washing facilities are subject to the following standards:
a.
Washing facilities. No building or structure shall be located within 30 feet of any public street or within 20 feet of any interior property line of a residential use or residential district. Washing facilities are subject to drainage and clean water regulations as determined by the Public Works Department.
b.
Hours of operation. When abutting a residential district, the hours of operation are limited to 8:00 a.m. to 8:00 p.m., seven days a week.
(7)
Service stations. Service stations and any other commercial use that includes fuel pumps for retail sales of gasoline are subject to the following standards:
a.
Pump islands. Pump islands shall be located a minimum of 15 feet from any property line to the nearest edge of the pump island. A canopy or roof structure over a pump island may encroach up to ten feet within this distance.
b.
Abandonment. Any service station shall in the case of abandonment or non-operation of the primary use be dismantled and the site cleared within 12 months subsequent to the close of the last business day.
Private campgrounds and RV parks shall be located, developed, and operated in compliance with following standards:
(1)
Unauthorized camping prohibited. It shall be unlawful to place, maintain, use, or occupy any vehicle or temporary structure, such as a tent, lean-to, or other makeshift enclosure for which no building permit has been issued, on any lot of real property for the purpose of camping, dwelling, maintaining, or establishing a temporary or permanent residency except under the following circumstances:
a.
Properties located outside the valley growth boundary. Property owners camping on their own real property shall be limited to 14 days within any 60-day period.
1.
Refuse and solid waste shall be properly managed in accordance with the requirements of Environmental Health Department and Chapter 7.05 of the County Code, Removal of Refuse.
2.
Burning of refuse is prohibited.
(2)
Compliance with state law. All campgrounds shall comply with the minimum standards of the Special Occupancy Parks Act (Health and Safety Code Section 18860, et seq.) and the applicable regulations adopted by the Department of Housing and Community Development (Code of Regulations, Title 25, Chapter 2.2) including, but not limited to setback and separation standards, infrastructure requirements, operations, maintenance, and inspections within these facilities.
a.
Organized camps meeting the definition of CA Health and Safety Code, Division 13, Part 2.3, Sections 18897—18897.7; and Title 17, Subchapters 6, Sections 30700—30753 of the California Code of Regulations are subject to regulation by the Environmental Health Department. Permits to operate organized camps along with the associated food facility, public swimming pools and public water systems are issued by the Environmental Health Department. Enforcement of building code standards for organized camps will be delegated from the Environmental Health Department to the Building Department.
(3)
Minimum area and density. The minimum area of a campground shall be three acres. A minimum of 50 percent of the total site area shall be left in its natural state or be landscaped. The remaining 50 percent of land is eligible for development. For campgrounds with designated camping areas, each individual campsite or RV space shall be no less than 1,000 square feet. The overnight population per campsite, RV space, or cabin shall not exceed six persons. Occupancy of group sites and cabins will be determined through the use permit based on size and location.
(4)
Fencing. A fence, wall, landscaping screen, earth mound or other screening approved by the Planning Director, or otherwise required by this Code, may be required as needed for public safety. Fencing to delineate campground boundaries may also be permitted, but should be of a design consistent with character of the neighborhood.
(5)
Access. Campground access roads shall have clear and unobstructed access to a public roadway. There shall be no direct access from an individual campsite, RV space, or cabin to a public roadway.
(6)
Trash collection areas. Trash collection areas shall be adequately distributed and enclosed by a six-foot-high landscape screen, solid wall, or fence that is accessible on one side. Bear-resistant garbage can containers may be required.
(7)
Water supply and sewage disposal. Adequate water supply and/or septic capability is available to serve the project, as determined by the County Department of Environmental Health.
(8)
Commercial use. Campgrounds may include minor accessory commercial uses such as recreational equipment rental or general stores subject to use permit approval.
(9)
Length of stay. The maximum length of stay in any campground shall not exceed 21 consecutive days within a 30-day period unless a longer time period is approved through the use permit.
(10)
Structures and recreational facilities. The following standards apply to structures on the site, apart from the personal residence of the property owner or caretaker:
a.
Structures are limited to: restrooms/showers; clubhouse, which may contain one commercial kitchen facility and be used for minor recreational purposes; and, cabins, yurts, and permanent RV trailers for transient occupancy.
b.
Campgrounds may include minor accessory recreational uses or structures such as but not limited to swimming pools and tennis courts.
Caretaker residences shall be located, developed, and operated in compliance with following standards:
(1)
Accessory use. A caretaker residence is intended for sites that do not allow a single-unit dwelling by right. The caretaker residence must be accessory to a primary use that requires a caretaker for security purposes or for continuous supervision or care of people, plants, animals, equipment, or other conditions on site. See also agricultural labor housing and employee housing.
(2)
Number of units. A maximum of one caretaker residence is permitted per site.
(3)
Occupancy. At least one of the occupants of the caretaker residence shall be the owner or lessee, or an employee of the owner or lessee of the site.
(4)
Location. A caretaker residence shall be located on the same lot as the primary use it serves. It may be located within or attached to a building on the site or as a detached structure.
(5)
Compliance with building standards.
a.
All housing, whether permanent or temporary, shall meet the development standards for the zone and be subject to all applicable building, fire, and health codes.
b.
Permanent housing shall be constructed and maintained to conform to State Department of Housing and Community Development regulations for employee housing (Health and Safety Code Section 17000 et seq.).
c.
Mobile homes and recreational vehicles used specifically for such housing shall be maintained in compliance with the applicable requirements of the Manufactured Housing Act (Health and Safety Code Section 18000 et seq.).
(6)
Removal of housing unit. A caretaker residence shall remain in use concurrent with the existence of the use that justifies the housing unit. Upon termination of the allowed primary use, the caretaker residence shall be removed if a temporary structure, or converted to another allowed use if a permanent structure.
Drive-in or drive-thru facilities shall be located, developed and operated in compliance with the following standards:
(1)
Where allowed. Drive-in and drive-thru facilities are allowed, subject to approval of a zoning clearance or in conjunction with a discretionary permit as authorized by the base zone district.
(2)
Drive-in and drive-through aisles. Drive-in and drive-through aisles shall be designed to allow safe, unimpeded movement of vehicles at street access points and within the travel aisles and parking space areas.
(3)
Drive-in and drive-through queue area. Each drive-through aisle shall provide a sufficient queue for four cars, of at least 80 feet, and the queue area shall not interfere with public rights-of-way or streets, or with on- or off-site circulation and parking. The Planning Director may grant exceptions to the queue size based on an interior traffic circulation study.
(4)
Screening. Each drive-through aisle shall be screened with a combination of decorative walls and landscape to a height of 20 inches to prevent headlight glare and direct visibility of vehicles from adjacent streets and parking lots.
(5)
Menu boards. Menu boards shall not exceed 32 square feet in area, with a maximum height of six feet, and shall face away from public rights-of-way unless located at least 35 feet from the street and adequately screened from view. All outdoor speakers shall be directed away from any residential district or residential use.
(6)
Pedestrian walkways. Pedestrian walkways shall not intersect drive-in or drive-through aisles, unless no alternative exists. In such cases, pedestrian walkways shall have clear visibility, emphasized by enhanced paving or markings.
Emergency shelters shall be located, developed, and operated according to the following standards:
(1)
Location. An emergency shelter providing up to 25 beds shall not be required to be more than 300 feet of another Emergency Shelter.
(2)
Length of stay. Occupancy for any one individual in the emergency shelter shall be limited to six months (180 days) within any 12-month period.
(3)
On-site waiting and intake areas. The emergency shelter shall provide on-site waiting and intake areas, such areas shall be located either inside the facility or fully screened from view of the public right-of-way and neighboring properties.
(4)
Hours of operation. Each emergency shelter shall establish and maintain set hours of operation for client intake and discharge. These hours shall be clearly displayed at the entrance to the shelter at all times. The shelter operator shall discourage loitering of clients in the vicinity of the shelter during non-intake hours of operation.
(5)
Staffing. On-site management shall be provided 24 hours a day seven days a week and accompanied by support staff. Only individuals that do not utilize a client bed/or other on-site services are eligible as on-site management.
(6)
Management plan. Prior to commencing operation, the emergency shelter provider must have a written management plan. The management plan must include the following:
a.
Total number of beds provided, including the number of beds, if any, are reserved for persons under the age of 16.
b.
Minimum square footage of personal living space for each resident, the square footage of indoor and outdoor common areas, and the number of bathing/bathroom facilities.
c.
Staffing information including the total number of staff and staffing by shift, provisions for staff training, and contact information for key staff.
d.
Resident identification process and the type of clientele served. Include provisions for dealing with sex offenders and/or parolees.
e.
Description of training, counseling, social services, or other types of services that will be provided on-site. Food related services may require additional permits and/or clearances from the Environmental Health Department.
f.
Policies regarding pets. Kennels may require a permit from the Environmental Health Department. Outdoor Kennels require approval of a Conditional Use Permit when associated with an emergency shelter.
g.
Timing and location of outdoor activities.
h.
Temporary storage of residents' belongings.
i.
Safety and security including lighting.
j.
Site plan, floor plan, and building elevations.
(a)
Applicability. To provide a mechanism for on-site employee housing where the subject business, operation or institution proposing employee housing is in a location where other housing is unavailable, infeasible, or is necessary for the operational characteristics of the business.
(b)
Occupancy. At least one of the occupants of each employee housing unit shall be a full-time employee of the business, operation or institution that qualifies for employee housing pursuant to this Section.
(c)
Location. Employee housing shall be located on the same lot as the primary use it serves, unless an off-site location is approved by the Planning Commission through approval of a minor conditional use permit. A finding shall be made indicating that due to topography, operational characteristics, or other site constraints it is infeasible for the employee housing to be located on the same site as the use requiring the employee housing. In no instance shall the employee housing be located more than one mile from the use requiring the employee housing.
(d)
Number of units: The number of dwelling units designed for single family/households or number of beds in group quarters shall be determined by the decision-making authority. The applicant shall submit documentation demonstrating the number of units/beds necessary for the conduct of the principal use.
(e)
Removal of housing unit. Employee housing may remain in use concurrent with the existence of the use that justifies the housing unit. Upon termination of the allowed primary use, the employee housing shall be removed if a temporary structure, or converted to another allowed use if a permanent structure.
(f)
Development standards.
a.
All housing, whether permanent or temporary, shall meet the development standards of the district and be subject to all applicable building, fire, and health codes.
1.
Location. Employee housing shall be located at least 50 feet from barns, pens or other structures that house livestock.
b.
Mobile homes used specifically for such housing shall be maintained in compliance with the applicable requirements of the Manufactured Housing Act (Health and Safety Code Section 18000, et seq.). For purposes of zoning, manufactured homes utilized for employee housing shall not be considered a mobile home park.
c.
Temporary housing facilities. The use of tents, recreational vehicles, mobile camping equipment or other temporary facilities approved for human habitation for employees may be allowed upon approval of a Minor Conditional Use Permit. In addition to the criteria stated above, temporary housing facilities for employees shall meet the following requirements:
1.
Length of time temporary housing facilities may be used during a calendar year shall be determined through the use permit process;
2.
Shall be located a minimum of 100 feet from public rights-of-way, property lines, and seasonal or permanent water ways;
3.
Shall obtain clearances from the Environmental Health Department for the provisions of water; waste water, solid waste; and any proposed food facilities.
(a)
Number. The number of large family day care homes located along a street frontage are limited to the following:
(1)
One per 1,000 linear feet of street frontage in the residential zones and Plumas Lake Specific Plan.
(2)
One per 2,500 linear feet of street frontage in the AE and AR, zones.
(b)
Parking. Three spaces are in addition to the two off-street spaces for primary residence. Driveways may be utilized to accommodate parking for the day care.
(a)
Limitation in valley growth boundary. In any residential district, farmers' markets may be permitted only on parking lots and other paved areas serving community facilities; schools; or other public or quasi-public uses. Farmers markets in commercial districts may be permitted as special events as identified in Section 11.32.320.
(b)
Limitation in agricultural and rural community districts. Farmer's markets in agricultural districts and rural residential districts that are not located at community facilities or schools may be permitted as part of a ranch marketing operation. Farmers markets in rural commercial zone districts may be permitted as special events as identified in Section 11.32.320.
(c)
Operational standards. Farmers markets shall comply with the following standards:
(1)
The market is operated by one or more certified producers, a nonprofit organization, or a local government agency;
(2)
All producers are authorized by the County Agricultural Commissioner to sell directly to consumers farm products or value-added farm products;
(3)
The market operator and/or producers secure all necessary licenses, certificates and health permits, and all agricultural products meet all pertaining health and safety standards;
(4)
Documentation is provided to show that all standards set forth in this Section are met.
(d)
Hours of operation. Market activities shall be conducted between the hours of 7:00 a.m. and 7:00 p.m., with one hour provided for set-up and one hour for clean-up and take-down.
(e)
Lighting. Any lighting must be shielded so as not to shine directly or indirectly on adjacent property.
(f)
Waste disposal. Adequate composting, recycling, and trash containers shall be provided during hours of operation, and shall be removed from site for appropriate disposal. The site shall be cleaned at the end of each day of operations, including the removal of all stalls and debris.
(g)
Management plan. In instances where a zoning clearance or administrative use permit is required, a management plan shall also be prepared and provided to the review authority, including the following:
(1)
Identification of (a) Market Manager(s), who shall be present during all hours of operation.
(2)
A set of operating rules addressing dates and hours of operation; maintenance; security; refuse collection; and parking.
a.
Site circulation. Market shall not block accessible pathways or parking spaces, public rights-of-way, sidewalks, or impede on-site circulation and parking for either the market or any businesses that are operating on the site.
Home occupations shall be located and operated in compliance with the following standards:
(1)
Terms of use. A home occupation is considered accessory and incidental to a primary residential use.
(2)
Zoning clearance required, not transferable. A zoning clearance or self certification is required for each home occupation, pursuant to the provisions of Chapter 11.55, Zoning Clearances. A zoning clearance to conduct a home occupation at a particular address is not transferable from one party to another, nor may the type of business be modified. A new zoning clearance or self certification must be obtained for each new home occupation.
(3)
Operational and performance standards. Home occupations must be located and operated consistent with the following standards:
a.
No person other than members of the family residing on the premises shall be engaged in such occupation.
b.
Instructional services shall be limited to no more than two students at one time and no more than four lessons/appointments per day.
c.
Personal services such as barbers, beauty salons and nail salons or dog grooming when conducted by appointment only and do not exceed four appointments per day.
d.
Not more than 25 percent of the floor area of the dwelling unit, including attached garages, shall be used in the conduct of the home occupation.
e.
Within the valley growth boundary, no building or space outside of the dwelling unit and attached garage shall be used for home occupation purposes. Any work conducted within a garage shall be done with the garage doors closed. Outside the valley growth boundary, detached garages, workshops and enclosed accessory structures may be utilized as part of the home occupation and do not count towards the limitation on floor area specified above.
f.
In no way shall the appearance of the structure be so altered or the conduct of the occupation within the structure be such that the structure may be reasonably recognized as serving a nonresidential use.
g.
No equipment or process shall be used in such home occupation which creates noise, vibration, glare, fumes, odors, or electrical interference detectable to the normal senses off the lot. In the case of electrical interference, no equipment or process shall be used which creates visual or audible interference in any radio or television receivers off the premises, or cause fluctuations in the line voltage off the premises.
h.
The home occupation shall not generate pedestrian or vehicular traffic in excess of that customarily associated with the zone in which the use is located.
i.
All maintenance or service vehicles and equipment, or any vehicle bearing any advertisement related to the home occupation or any other similar vehicle shall be garaged or entirely screened. Such vehicle shall not have more than two axles.
j.
There shall be no use of utilities or community facilities beyond that normal to the use of the property for residential or agricultural purposes as defined in the district.
k.
There shall be complete conformity with Fire, Building, Plumbing, Electrical and Health Codes and to all Federal, State and County laws or ordinances.
l.
Home occupations that exceed the standards for vehicle trips, employees, or that have display/sales areas may be permitted upon approval of an Administrative or Minor Use Permit as established by the following table:
(4)
Cottage food operations. A cottage food operation is allowed as an accessory use to any legally established residential unit subject to the standards of this Code, which are consistent with and implement State law (Sections 51035 et seq. of the Government Code and Sections 109947, 110050, 110460, 111955, 113789, 113851, 114021, 114023, 114390, 114405, and 114409, 113758, and 114088, and 114365 et seq. of the Health and Safety Code), relating to food safety:
a.
Registration. Cottage food operations shall be registered as "Class A" or "Class B" cottage food operations and shall meet the respective health and safety standards set forth in Section 114365 et seq. of the California Health and Safety Code.
b.
Sales. Sales directly from a cottage food operation are limited to the sale of cottage food products. A cottage food operation shall not exceed the gross annual sales that is set forth by the California Department of Public Health in each calendar year that follows.
c.
Operator and employee allowed. Only the cottage food operator and members of his or her household living in the unit, as well as one full-time equivalent cottage food employee, may participate in a cottage food operation.
d.
No exterior alteration. No exterior physical alteration or addition that would change the residential character of the unit is allowed in conjunction with the establishment of a cottage food operation.
e.
Location of operations. No sales, production, or materials storage associated with the cottage food operation may be located in an area generally visible from a public right-of-way.
Equipment. Cottage food operations may employ kitchen equipment as needed to produce products for which the operation has received registration, provided that equipment would not change the residential character of the unit, result in safety hazards, or create smoke or steam noticeable at the lot line of an adjoining residential property. Venting of kitchen equipment shall not be directed toward neighboring residential uses. If a commercial kitchen is required, the use is not classified as a cottage food industry. Please refer to Section 11.72.040, Commercial Use Classifications: Food Preparation and Section 11.74, Land Use Regulation Table.
(5)
Prohibited home occupations. The following specific businesses are not permitted as home occupations:
a.
Adult-oriented business;
b.
Ambulance services;
c.
Vehicle or equipment repair, painting, body/fender work, upholstering, detailing, washing, including motorcycles, trucks, trailers and boats;
d.
Automotive/vehicle sales with any on-site storage or sale of vehicles;
e.
Boarding, care, training, or breeding of animals for commercial purposes (except as permitted as a hobby kennel and subject to the regulations of Chapter 6.25, Pet Shops and Kennels, of the County Code).
f.
Veterinary services;
g.
Commercial food preparation, food handling, processing or packing other than that qualifying as a cottage food industry.
h.
Wood working or similar uses with excessive dust or noise when located within the valley growth boundary. Outside valley growth boundary must meet home occupation development standards;
i.
Medical and dental offices, clinics, and laboratories;
j.
Mini storage;
k.
Mortuaries;
l.
Recording studio (electronic composition, recording, and re-mixing conducted with headphones and using no amplification, live instruments or live performance excepted);
m.
Restaurants;
n.
Retail stores;
o.
Towing service;
p.
Welding, metal working, and machining businesses when located within the valley growth boundary. Outside valley growth boundary must meet home occupation development standards.
(6)
Denial and revocation of home occupation zoning clearances. A home occupation approval may be revoked or modified by the Planning Director subsequent to an administrative hearing for violation of any standard of this Section. In the event of the revocation of any home occupation approval, or of objection to the limitations placed thereon, appeal may be made in accordance with Section 11.53.150, Appeals and Calls for Review.
Agricultural Homestays and Bed and Breakfast Inns (B&B) shall be developed, located, and operated in compliance with the following standards:
(1)
Other permits and clearances. All B&B and agricultural homestays are subject to obtaining any required business licenses and payment of transient occupancy taxes as determined by the County Tax Collector's office. Facilities that provide meals or snacks to guests shall also obtain all required Environmental Health permits and clearances for a "restricted food service facility".
a.
Establishments that exceed the thresholds listed for B&Bs or agricultural homestays (i.e. number of rooms rented or meals served) shall be classified as a hotel/motel and is subject to the requirements and zone districts that allow such uses.
(2)
Agricultural homestays. Agricultural homestays shall be accessory and subordinate to an on-site, bona fide agricultural or ranching operation and operated by a resident of the property. They shall comply with the following standards:
a.
The use is limited to a maximum of 15 visitors at any one time.
b.
Meals may be served to overnight guests only. There are no limitations on the number of meals or the times at which they are served. The price of food shall be included in the price of the overnight accommodations, in compliance with the California Retail Food Codes (Health and Safety Code Section 113893) enforced by the County.
(3)
Bed and breakfasts. Bed and breakfast establishments shall be located, developed, and operated in compliance with the following standards:
a.
Type of structure. A bed and breakfast may only be located, developed and operated in a single-family dwelling, unless authorized with the approval of a use permit.
b.
Appearance. In all residential districts, the exterior appearance of a structure housing a bed and breakfast shall not be altered from its original single-family character.
c.
Limitation on services provided. Service of meals and rental of bedrooms shall be limited to registered guests. Separate or additional kitchens for guests are prohibited. Unless a commercial kitchen is installed and approved by the Environmental Health Department, meals are limited to breakfast and pre-packaged self serve snacks as regulated by the California Health and Safety Code.
(4)
Health resorts and retreat centers.
a.
Compatibility with adjacent uses. Lots adjacent to or within agricultural zoning must be reviewed by the Yuba County Agricultural Commissioner for compatibility with surrounding agricultural uses prior to action by the decision-making authority.
b.
Limitations on services provided. Meals may be served to registered day use or overnight guests only. There are no limitations on the number of meals or the times at which they are served.
A low-barrier navigation center development is a use by right in areas zoned for mixed use and nonresidential zones permitting multifamily uses, if it meets the following requirements:
(1)
Connected services. It offers services to connect people to permanent housing through a services plan that identifies services staffing.
(2)
Coordinated entry system. It is linked to a coordinated entry system, so that staff in the interim facility or staff who co-locate in the facility may conduct assessments and provide services to connect people to permanent housing. "Coordinated entry system" means a centralized or coordinated assessment system developed pursuant to Section 576.400(d) or Section 578.7(a)(8), as applicable, of Title 24 of the Code of Federal Regulations, as those sections read on January 1, 2020, and any related requirements, designed to coordinate program participant intake, assessment, and referrals.
(3)
Code compliant. It complies with Chapter 6.5 (commencing with Section 8255) of Division 8 of the Welfare and Institutions Code.
(4)
Homeless management information system. It has a system for entering information regarding client stays, client demographics, client income, and exit destination through the local Homeless Management Information System, as defined by Section 578.3 of Title 24 of the Code of Federal Regulations.
Within 30 days of receipt of an application for a low-barrier navigation center development, the County shall notify a developer whether the developer's application is complete, pursuant to Government Code Section 65943. Within 60 days of receipt of a completed application for a low- barrier navigation center development, the County shall act upon its review of the application.
Mobile vendors shall be located and operated in compliance with the following standards:
(1)
Itinerant/roving vendors. Itinerant vending is permitted pursuant to the standards listed below pertaining to the location, appearance of vehicle and maintenance of the site (Sections (3) through (5). Mobile vending shall only occur during daylight hours and are subject to the County's Noise Ordinance. Additional regulations pertaining to mobile vending may be found in CDSA's "Guidelines for Mobile Vending Facility Operation" handout.
(2)
Non-itinerant vending. Non-itinerant vending on private property, public property or in the public right-of-way requires a temporary use permit, pursuant to the procedures of Chapter 11.58, Temporary Use Permits, as well as any other permits, such as but not limited to a health certificate, vendor permit (County parks and public property), or encroachment permits, that may be required by affected agencies.
a.
Site plan. A mobile food vendor shall submit a site plan indicating the location of the operation relative to surrounding buildings, parking lots and public rights-of-way, as well as such other information deemed necessary by the Planning Director.
b.
Operational parameters. A temporary use permit for non-itinerant vending shall not exceed a period of one year. Extensions may be applied for prior to the expiration of the temporary use permit in one year increments up to a cumulative total of four years, unless findings can be made that there is still a need for the use. The temporary use permit may limit the days and hours of operation based on location.
c.
Sanitation facilities. All vendors shall arrange for access to a restroom for the operator; such facility for any vendor with food operations shall have hot and cold running water.
d.
Location and transferability. The temporary use permit is for a specific location and cannot be transferred to another location or vendor.
(3)
Location.
a.
Conflict with merchants. Vendors shall not interfere with access to any public or private establishment.
b.
Pedestrian and emergency access. Vendors are permitted only in locations that will not conflict with pedestrian access or interrupt traffic flow or emergency access.
c.
Setback from public right-of-way. A mobile food vending vehicle located on private property shall be set back a minimum of ten feet from any public sidewalk or right-of-way when the service window faces the street. Less obstructive orientations shall insure that the queue does not encroach upon the public right-of-way.
d.
Parking. The mobile food vendor shall not locate in parking spaces that are required to meet minimum parking requirements for any other business.
(4)
Condition and appearance of vehicles.
a.
Display of permits. The mobile food vendor shall display current business tax certificate, health department permit (and decal) and mobile food vending permit in plain view and at all times on the exterior of the food vending vehicle.
b.
Signs. Signs must be affixed to the apparatus and may not exceed eight square feet.
c.
Self-contained utility hookups. The mobile food vending vehicle and use shall be entirely self-sufficient in regards to gas, water, and telecommunications. Should any utility hook-ups or connections to on-site utilities be required for non-itinerant vendors, the mobile food vendor shall be required to apply for appropriate permits to ensure building and public safety and consistency with applicable building codes. Hookups shall be located to pose no danger to pedestrians.
d.
Type of vehicle. The mobile food vending vehicle shall be a self-propelled vehicle or trailer maintained in mobile operating condition at all times. The vehicle shall not become a fixture of the site and shall not be considered an improvement to real property.
(5)
Condition and appearance of site.
a.
Litter. The mobile food vendor shall provide a minimum of two 32-gallon litter receptacles within 15 feet of the mobile food vending vehicle. The receptacles will serve both employees and customers.
b.
Discharge prohibited. The vendor shall not discharge items onto the sidewalk, gutter or storm inlets.
c.
Site condition. The site shall be maintained in a safe and clean manner at all times. Exterior storage of refuse, equipment or materials associated with the mobile food vending enterprise is prohibited. The lot shall be paved.
Eating and drinking establishments with outdoor dining or seating areas shall be located, developed, and operated in compliance with the following standards:
(1)
Permit requirements. Outdoor dining or seating is considered an accessory use and no additional land use permit is necessary other than the permit required for the primary use except as provided below:
a.
Administrative use permit approval is required when the outdoor dining or seating area is located immediately abutting the property line of a residential district or use and contains seating for more than 15 customers.
(2)
Hours of operation. Hours of operation shall be limited to the hours of operation of the associated eating and drinking establishment. When adjacent to a residential district, hours of operation and outdoor activities such as music or lighting may be restricted as determined through the administrative use permit.
The on-going or permanent outdoor display of merchandise—except for automobile/vehicle sales and leasing, which is subject to Section 11.32.060, automobile/vehicle sales and services—shall comply with the following minimum standards:
(1)
Location. Outdoor sales shall be located entirely on private property outside any required setback (or landscaped planter in zoning districts that do not have required setbacks), fire lane, or fire access way.
(2)
Screening. All outdoor sales and activity areas other than vehicle sales lots, produce stands, and nursery product sales shall be screened from adjacent public rights-of-way and residential districts.
(3)
Location of merchandise. Displayed merchandise shall occupy a fixed location that does not disrupt the normal function of the site or its circulation and does not encroach upon required parking spaces, driveways, pedestrian walkways, or required landscaped areas. These displays shall also not obstruct sight distances or otherwise create hazards for vehicle or pedestrian traffic.
Personal storage facilities shall be located, developed and operated in compliance with the following standards:
(1)
Applicability. The provisions of this Section shall apply to all new personal storage uses and to all existing facilities at such time as the storage area of the existing business is expanded.
(2)
Business activity. The use of personal storage facilities by customers shall be limited to inactive storage only. No retail, repair, or other business activity shall be conducted out of the individual rental storage units. No activities other than rental of storage units, pick-up and deposit of storage, sale of packing supplies or rental of moving equipment shall be allowed on the premises. Examples of activities prohibited in said facilities include, but are not limited to the following:
a.
Auctions, commercial wholesale or retail sales, or miscellaneous garage sales. An exception is made for auctions required by law to comply with lien sale requirements. During the course of said lien sales, customer vehicles shall not be allowed to obstruct travel ways within the personal storage facility.
b.
The servicing, repair, or fabrication of motor vehicles, boats, trailers, lawn mowers, appliances, or other similar equipment.
c.
The operation of power tools, spray-painting equipment, table saws, lathes, compressors, welding equipment, kilns, or other similar equipment.
d.
The establishment of a transfer and storage business.
(3)
Enclosure. Outdoor storage of boats, trailers, and/or other vehicles is prohibited within the valley growth boundary unless screened and within an enclosed area. No boats, trailers, and/or other vehicles shall be parked or otherwise stored outside the storage units except in areas approved for such storage.
(4)
Hazardous materials. No caustic, hazardous, toxic or flammable or explosive matter, material, liquid, or object, nor any matter, material, liquid or object that creates obnoxious or offensive dust, odor or fumes shall be stored in a personal storage unit.
(5)
Utilities. Water, gas or telephone service to any rental space is prohibited.
(6)
Habitation. Human habitation of any rental space is prohibited.
(7)
Notice to tenants. As part of the rental process, the facility manager shall inform all tenants of conditions restricting storage of hazardous materials and limitation on the use of the storage units. These restrictions shall be included in rental contracts and posted at a conspicuous location within the front of each rental unit.
(8)
Surfacing. All areas shall meet the paving requirements listed in Section 11.25.100.(b)(1).
(9)
Exterior wall treatments and design. Within valley growth boundary, exterior walls visible from a public street or residential district shall be constructed of decorative block, concrete panel, stucco, or similar material. These walls shall include architectural relief through articulation, trim, change in color at the base, variations in height, the use of architectural "caps," attractive posts, or similar measures. Outside valley growth boundary, exterior walls visible from a public street shall be constructed with materials compatible with the surrounding neighborhood.
(a)
Purpose. The purpose of this Section is to promote housing opportunities for the present and future residents of Yuba County through the establishment of policies and development standards for planned mobile home parks. The development standards for planned mobile home parks will further encourage the creation of stable, attractive, residential environments within the individual parks.
(b)
Development standards. Planned mobile home parks shall comply with the following development standards
(1)
Mobile home sites.
a.
Site identification. Each mobile home site shall be plainly marked and numbered for identification.
b.
Minimum site area. The mobile home sites in a planned mobile home park shall average at least 2,700 square feet in area, but no site shall be smaller than 2,000 square feet.
c.
Minimum site width. Each mobile home site shall be an average width of 30 feet plus the width of the mobile home, unless it can be shown that adequate space for a patio, parking, and side yard(s) will be ensured, despite a site of lesser width.
(2)
Yards.
a.
Front yard. Each mobile home site shall have a front yard of not less than five feet. The front yard so required shall not be used for vehicle parking, except such portion thereof as is devoted to driveway use.
b.
Side yard, corner sites. On corner sites, the side yard adjoining the planned mobile home park street shall not be less than five feet.
c.
Side yards, interior. Each mobile home site shall have a side yard on each side of not less than five feet, or one side yard of not less than ten feet.
d.
Side yard, driveway. When used for access of a parking facility, a side yard shall be wide enough for a ten-foot-wide unobstructed driveway. All such side yard driveways shall be paved with concrete or asphaltic concrete unless located outside the valley growth boundary.
e.
Rear yard. Each mobile home site shall have a rear yard of not less than five feet in depth.
(3)
Projection into yards. The following structures may be erected or projected into any required yard:
a.
Eaves, stairways and awnings not to exceed one foot.
b.
Landscape elements including trees, shrubs, and other plants, except hedges, provided that such landscape feature does not hinder the movement of the manufactured home in or out of its space.
c.
Manufactured home hitches.
d.
Necessary appurtenances for utility services.
e.
A single accessory structure that is less than 120 square feet in area and eight feet in height may be located within side or rear setbacks.
(4)
Minimum distance between structures. No portion of a manufactured home or attached accessory structure shall be closer than ten feet to another manufactured home or attached accessory structure.
(5)
Minimum size of mobile homes. No mobile home that is less than ten feet wide or has a floor bed of less than 370 square feet may be parked or located on a mobile home site in a planned mobile home park.
(6)
Maximum site coverage. The mobile home and accessory structures shall not cover more than 75 percent of the mobile home site.
(7)
Number of homes per site. Not more than one single-family mobile home may be placed on a mobile home site.
(8)
Off-street parking. In addition to the parking requirements of Chapter 11.25, Parking and Loading, the following standards shall apply to planned mobile home parks:
a.
Each mobile home site shall have a paved space suitable for providing automobile shelter with space for at least two automobiles for each manufactured home. Gravel or other surfacing may be approved outside of the valley growth boundary
b.
Recreation and laundry areas shall have sufficient parking facilities to accommodate one automobile for every ten mobile home sites.
(9)
Signs. In addition to the requirements of Chapter 11.27, Signs, the following standards shall apply to planned mobile home parks:
a.
Adequate signs and markings indicating directions, parking areas, recreation areas, and street names shall be established and maintained in the manufactured home park. Such signs shall not exceed six square feet in area.
b.
Signs or name plates not exceeding two square feet in area and displaying the name and address only of the occupant of the manufactured home may be erected at each mobile home site.
c.
Signs which identify or advertise the planned mobile home park may be erected if approved by the hearing body on its action on the conditional use permit for the manufactured home park. Such signs must be located on the premises and shall not be more than 120 square feet in area. They shall not be animated or have flashing lights.
(10)
Landscaping. In addition to the landscaping requirements of Chapter 11.24, Landscape, the following landscaping provisions shall apply to all planned mobile home parks:
a.
All open areas except driveways, parking areas, walkways, utility areas, improved decks, patios, or porches shall be maintained with landscaping as hereinbefore defined.
b.
The trees shall be planted along street frontage as may be required by the hearing body upon recommendation of the Community Development and Services Agency's Public Works Department.
(11)
Walls and fences. Walls and fences on individual mobile home sites shall not exceed three feet in height. Walls or fences erected around the perimeter of the planned mobile home park may be required by the hearing body. The height, construction, and type of material for such perimeter walls shall be as specified by the hearing body in the permit authorizing the use.
(12)
Trash storage. Containers for trash storage of a size, type and quantity approved by the County shall be provided. They shall be placed so as to be concealed from the street and easily accessible to the mobile home sites.
(13)
Streets. Streets within planned mobile home parks shall be provided in such a pattern as to provide convenient traffic circulation within the manufactured home park. On-street parking is not permitted. Streets shall be designed as follows:
a.
Width. Streets shall have a width of not less than 30 feet, including curbs.
b.
Curbs. There shall be concrete roll curbs on each side of the streets.
c.
Paving. Streets shall be paved in accordance to standards established by the Community Development and Services Agency's Public Works Department.
d.
Lighting. Streets shall be lighted in accordance to standards established by the Community Development and Services Agency's Public Works Department.
(14)
Park and recreation areas. A central recreation area shall be established in each planned mobile home park created pursuant to the provisions of this Chapter. The size of such area shall be at least 200 square feet per mobile home site. The recreation area may contain community club houses, swimming pools, shuffleboard courts, and similar facilities. The hearing body may permit decentralization of the recreation facilities in accordance with principles of good planning provided that the total recreation area meets the above stated minimum size.
(15)
Office. Every planned mobile home park shall include a permanent building for office use. Such building may include a single-family dwelling for the exclusive use of the owner or manager.
(16)
Laundry rooms. Every planned mobile home park shall have one or more laundry rooms. Laundry drying lines shall not be permitted on any mobile home site.
(17)
Mail boxes. Each mobile home site shall be equipped with a receptacle for mail deliveries in accordance with the standards prescribed by the local residents.
(18)
Storage areas. Areas used for the storage of travel trailers, boats, and other such items may be established in a planned mobile home park provided they are adequately screened from public view.
(19)
Utilities. All utility distribution facilities serving individual mobile home sites within the valley growth boundary shall be placed underground. The owner is responsible for complying with the requirements of this Subsection and he shall make the necessary arrangements with each of the serving utilities for the installation of such facilities. Transformers, terminal boxes, meter cabinets, pedestals, concealed ducts, and other necessary appurtenant structures may be placed above ground. Water and sewer distribution facilities shall be installed in conformance with specifications of the Utility Engineer. All mobile home sites must be served with water, electricity, and a solid waste disposal.
(20)
Transient mobile home sites. Sites reserved for transient mobile homes shall be so designated on the plans submitted with the application for the planned mobile home park conditional use permit. The site, yard, and property development standards of this Section shall fully apply to sites reserved for transient mobile homes. Mobile homes less than ten feet wide or with a floor bed of less than 370 square feet may occupy such designed transient mobile home sites for periods up to 90 days.
(21)
Sale of mobile homes at manufactured home parks.
a.
Conditional use permit. The operation of a business or occupation either full or part-time, for the purpose of manufactured home sales, shall be allowed on the premises of any legally established planned mobile home park, subject to the issuance of a conditional use permit. This does not include the sale of individual manufactured homes by the owner of the unit.
b.
Restrictions. In no event shall the holder of the conditional use permit or any other person maintain or allow to be maintained on the planned mobile home park premises for display any manufactured home either assembled or disassembled which is not installed on the site and connected to all utilities sufficient to be legally adequate for immediate occupancy. The maximum number of unoccupied mobile homes so installed for display shall not exceed three units at any one time.
(22)
Development impact fees. Planned mobile home parks are subject to the County Development Impact Fees.
(c)
Allowed density.
(1)
RM medium density residential and RH high density residential districts. The density for mobile home parks is limited to the allowed density within the RM medium density residential and RH high density residential zoning districts unless a density bonus is approved.
(2)
RC rural commercial district. The allowed density for mobile home parks in the RC rural commercial district shall be determined by approval of a conditional use permit and carrying capacity for wells and septic systems as determined by the Department of Environmental Health.
(a)
Accessory use. Produce stands shall be operated in conjunction with and accessory to a primary agricultural use on the same site. They shall be operated by the agricultural producer and on premises controlled by the producer. Produce stands that do not meet the requirements of this Section shall be classified as a farm store and shall meet the requirements listed in Section 11.32.230, Ranch Marketing.
(b)
Products for sale. Products sold or offered for sale at a produce stand are limited to the following:
(1)
Unprocessed agricultural products. A minimum of 50 percent of the selling space of the stand shall be dedicated to selling whole produce, shell eggs, and/or cut flowers grown or raised on the same premises as the stand or on neighboring farms.
(2)
Value-added agricultural products. Up to 30 percent of the selling space may be used for un-refrigerated processed agricultural products such as jams, preserves, pickles, juices, cured olives, and other value-added products made with ingredients produced on the premises or neighboring farms and may be sold concurrently with unprocessed agricultural products with approval from the Environmental Health Director.
(3)
Pre-packaged foods and beverages. No more than 50 square feet or ten percent of the selling space may be occupied by pre-packaged food and drinks such as bottled water, sodas, and crackers.
(c)
Number of stands. One stand shall be permitted per parcel, or per group of adjacent parcels under the same ownership.
(d)
Size limitation. The floor area of any permanent structure utilized as part of the produce stand shall not exceed 120 square feet in area. The total display area shall not exceed 500 square feet. Use of temporary structures such as but not limited to display tables and pop-up awnings shall only be used during the operational hours of the produce stand.
(e)
Minimum setbacks. Stands shall be located at least 20 feet from any street or highway and 100 feet from any existing residence outside the ownership of the stand operator. In addition, no part of the use, including selling area, signs, and parking, may be located within the triangular visibility area described in Section 11.19.130, Visibility at Intersections and Driveways.
(f)
Access. Access shall not be directly from a State highway unless the operator has secured an access agreement from Caltrans. The access drive is not required to be paved, but if not paved, shall be improved with gravel.
(g)
Parking. Sufficient area shall be provided for at least two vehicles to park; such parking area may consist of gravel and is not required to be paved.
(a)
Purpose. This Section is intended to allow the marketing and sale of agricultural products directly to consumers, as well as the provision of agricultural tourism, when such uses are accessory to a primary agricultural use (animal raising, crop production, dairy, or grazing) on the same site. Ranch marketing can provide supplementary income to agricultural operations, particularly to small farms, while maintaining the rural character of Yuba County's agricultural areas. This section is intended to implement General Plan policies to:
(1)
Support rural communities in the development of economic opportunities such as agricultural and ecological tourism.
(2)
Support agriculture, agricultural processing, agricultural tourism, recreational uses, and other natural-resource-based economic development in areas with land-based natural resources, natural beauty, and cultural attractions.
(3)
Preserve and enhance rural character.
(b)
Applicability. The regulations of this Section apply to ranch marketing uses, as defined in Chapter 11.72, Use Classifications, where they are permitted or conditionally permitted by the use regulations of the base and overlay zoning districts (Division II: Zoning and Overlay Districts) and are accessory to agricultural uses. This section does not apply to the following uses:
(1)
Produce stands that meet all of the standards of Section 11.32.220, Produce Stands.
(2)
Indirect sales by mail, telephone, or Internet in which delivery of the goods occurs off-site.
(3)
Wholesale sale of agricultural products.
(c)
General provisions.
(1)
Minimum lot size. Ranch marketing uses may only be established and operated on a site with an area of at least five acres. A smaller lot size may be approved through a waiver when the following findings can be made:
a.
The operation produces an agricultural commodity in sufficient quantity that a farm store rather than a seasonal produce stand is justified; and
b.
The farm store and any other related ranch market activities including required parking areas will not reduce the area utilized for agricultural production.
(2)
Accessory use. Ranch marketing uses shall be accessory to a primary agricultural production use (animal raising, crop production, dairy, grazing, or wineries) on the same property and shall be operated by the property owner or lessee of the agricultural property. Should the primary agricultural use of the property cease, as determined by the Agricultural Commissioner and Community Development and Services Agency Director, the ranch marketing operation shall also cease.
(d)
Permitted and conditionally permitted uses. The following table outlines the type of permit needed, if any, for various types of ranch marketing uses. The Planning Director shall make a determination of the most applicable permit type based on similarities between listed uses for any ranch marketing use not listed.
(e)
Development standards.
(1)
Parking. Parking for uses shall be as established in Section 11.25, Parking and Loading or as determined by the decision-making authority for those activities that require a use permit.
(2)
Hours of operation. Ranch marketing activities are limited to daylight hours unless alternative hours are authorized through a use permit or as authorized under Section 11.32.320(9), Temporary Uses and Special Events.
(3)
Amplified music or speech. Amplified music or speech is prohibited except as authorized under Section 11.32.320(9), Temporary Uses and Special Events or as part of an approved use permit.
(4)
Food safety (and compliance with other agency requirements). Sale of processed agricultural products, prepackaged food items, and prepared foods, where permitted, shall comply with the California Health and Safety Code, subject to approval from all applicable agencies including, but not limited to the Yuba County Department of Environmental Health, California Department of Public Health, and California Department of Food and Agriculture.
(f)
Findings for approval. Prior to approving a ranch marketing project the decision-making authority shall make the following findings:
(1)
The site meets the minimum acreage and planting standards.
(2)
The proposed use is secondary and subordinate to the agricultural use.
(3)
The proposed use does not detract from or diminish the on-site agricultural uses.
(4)
There is no adverse effect on agricultural production on surrounding properties.
(5)
There is no adverse effect on the surrounding properties and community character that cannot be mitigated to less than significant.
(g)
Exceptions to standards. The standards of this Section may be waived or modified through conditional use permit approval where in addition to the necessary findings for a conditional use permit, the Planning Commission shall also make the findings listed in Section 11.32.220(f), Findings for Approval.
(a)
Recycling collection facilities. Recycling collection facilities (convenience recycling), including reverse vending machines, shall comply with the following standards:
(1)
Accessory use. Recycling collection facilities shall be located on the same site as a permitted primary use that sells CRV products (i.e. grocery stores, convenience stores, and service stations). Ancillary sale of CRV products (i.e. vending machines for employees/customers, sale or complimentary to customers where primary business is not retail food products) does not constitute a primary use that sells CRV products. The Zoning Administrator may approve deviations to this requirement for facilities outside the valley growth boundary where a public benefit can be demonstrated by having the recycling collection facility at that location and the site is located within a convenience zone as determined by CalRecycle. However, recycling facilities shall not be permitted within an AE or AI zone district.
(2)
Size. Recycling collection facilities shall not exceed a footprint of 350 square feet.
(3)
Equipment. No power-driven processing equipment, except for reverse vending machines, may be used.
(4)
Location. Facilities shall not be located within 50 feet of any residential district. There shall be a minimum of one mile distance between convenience recycle centers.
(5)
Hours of operation. Attended facilities located within 100 feet of any residential district shall operate only during the hours between 8:00 a.m. and 7:00 p.m.
(6)
Setback. Facilities shall be set back at least ten feet from any lot line abutting a street and shall not obstruct pedestrian or vehicular circulation.
(7)
Containers. Containers shall be constructed of durable waterproof and rustproof material(s) and secured from unauthorized removal of material. Capacity shall be sufficient to accommodate materials collected in the collection schedule. Screening with fences, walls and landscaping is encouraged. No temporary shade structures (i.e. pop-up tents) or similar structures shall be permitted.
(8)
Identification. Containers shall be clearly marked to identify the type of accepted material, the name and telephone number of the facility operator, and the hours of operation.
(9)
Signs. The maximum sign area shall be 20 percent of the area of the side of facility or container or 16 square feet, whichever is larger. In the case of a wheeled facility, the side is measured from the pavement to the top of the container. The Director may authorize increases in the number, size and nature of additional signs for necessary directional or identification purposes but not for outdoor advertising.
(10)
Parking. Patrons and any attendant shall not reduce available parking spaces below the minimum number required for the main use of the site unless a parking study shows available capacity during recycling facility operation.
(11)
Site maintenance. Sites shall be maintained clean, sanitary, and free of litter and any other undesirable materials. All litter generated by the recycling operation shall be removed. The litter control shall be provided at the entrance(s) of the facility and along the street, sidewalk, and setback areas adjacent to the facility. Facilities shall also meet the requirements of the Public Works Department regarding drainage and water quality regulations.
(12)
Sorting. No sorting of materials shall occur on site, with the exception of reverse vending machines, which automatically sort materials.
(13)
Reverse vending machines. Reverse vending machines shall comply with the following additional standards:
a.
Location. Machines shall be located adjacent to the entrance of the commercial host use and shall not obstruct pedestrian or vehicular circulation. If located outside of a building, the machines shall not occupy required parking spaces.
b.
Maximum size. Each reverse vending machine shall not exceed an area of 50 square feet each (including any protective enclosure) or a height of eight feet.
c.
Identification. Machines shall be clearly marked to identify the type of material to be deposited, operating instructions, and the identity and phone number of the operator or responsible person to call if the machine is inoperative.
d.
Signs. Notwithstanding the above provisions for signs on collection facilities, the maximum sign area on a reverse vending machine shall be four square feet, exclusive of operating instructions.
e.
Lighting. Machines shall be illuminated to ensure comfortable and safe operation between dawn and dusk.
f.
Trash receptacle. A garbage can of at least 40-gallon size shall be located adjacent to the reverse vending machine for the deposit of non-recyclable materials.
(b)
Recycling processing facilities.
(1)
Location. Facilities shall not abut a residential district.
(2)
Screening. The facility must be screened from public rights-of-way by solid masonry walls or located within an enclosed structure. In industrial districts alternative screening mechanisms may be approved by the Planning Director.
(3)
Outdoor storage. Exterior storage of material shall be in sturdy containers or enclosures that are secured and maintained in good condition. Storage shall not be visible above the height of the required screen walls.
(4)
Identification. Facilities shall be clearly marked with the name and phone number of the facility operator and hours of operation.
General residential care facilities shall be located, developed, and operated in compliance with the following standards:
(1)
Location. A general residential care facility must be located a minimum of 300 feet from any other general residential care facility.
(2)
Outdoor activities. Outdoor activities may only be conducted between the hours of 7:00 a.m. and 10:00 p.m.
(3)
State licensing. All residential care facilities shall be licensed and certified by the State of California and shall be operated according to all applicable State and local health and safety regulations.
(4)
No drug or alcohol use. Residents and staff shall sign an agreement affirming that use of drugs or alcohol on the premises is prohibited and acknowledging that drug or alcohol use will result in termination or eviction.
Single room occupancy (SRO) facilities shall be located, developed, and operated in compliance with the following standards:
(1)
Maximum occupancy. Each SRO living unit shall be designed to accommodate a maximum of two persons.
(2)
Minimum size. An SRO living unit must have at least 150 square feet of floor area, excluding closet and bathroom. No individual unit may exceed 400 square feet.
(3)
Minimum width. An SRO of one room shall not be less than 12 feet in width.
(4)
Entrances. All SRO units must be independently accessible from a single main entry, excluding emergency and other service support exits.
(5)
Cooking facilities. Cooking facilities shall be provided either in individual units or in a community kitchen. Where cooking is in individual SRO units, SRO units shall have a sink with hot and cold water; a counter with dedicated electrical outlets and a microwave oven or properly engineered cook top unit pursuant to Building Code requirements; a small refrigerator; and cabinets for storage.
(6)
Bathroom. An SRO unit is not required to but may contain partial or full bathroom facilities. A partial bathroom facility shall have at least a toilet and sink; a full facility shall have a toilet, sink and bathtub, shower or bathtub/shower combination. If a full bathroom facility is not provided, common bathroom facilities shall be provided in accordance with the California Building Code for congregate residences with at least one full bathroom per floor.
(7)
Closet. Each SRO unit shall have a separate closet.
(8)
Common area. Four square feet per living unit shall be provided, excluding janitorial storage, laundry facilities and common hallways. At least 200 square feet in area of interior common space provided as a ground floor entry area that provides a central focus for tenant social interaction and meetings.
(9)
Tenancy. Tenancy of SRO units shall be limited to 30 or more days.
(10)
Facility management. An SRO Facility with ten or more units shall provide full-time on-site management. An SRO Facility with less than ten units shall provide a management office on-site.
(11)
Management plan. A management plan shall be submitted with the permit application for all SRO projects. At minimum, the management plan must include the following:
a.
Security/safety. Proposed security and safety features such as lighting, security cameras, defensible space, central access, and user surveillance;
b.
Management policies. Management policies including desk service, visitation rights, occupancy restrictions, and use of cooking appliance;
c.
Rental procedures. All rental procedures, including tenancy requirements;
d.
Staffing and services. Information regarding all support services, such as job referral and social programs; and
e.
Maintenance. Maintenance provisions, including sidewalk cleaning and litter control, recycling programs, general upkeep, and the use of durable materials.
(a)
Purpose. The provisions of this Section are intended to encourage the use of renewable energy sources that are compatible with surrounding uses. Solar energy systems, including personal solar energy systems and solar power generation facilities, shall be designed, located, and operated consistent with the standards of this Section.
(b)
Allowable size of solar energy systems. Any number of solar panels may be in operation on a single site, in accordance with this Section.
(1)
Personal solar energy systems. It is assumed that systems consistent with Table 11.32.270, below, are primarily providing power to offset consumption. Uses that have a higher energy requirement than stated in the table may submit documentation demonstrating that a larger system is needed to provide for historic energy demands (energy use from the previous 24 months and either: maximum output of panels, maximum continuous output of the inverters, or estimated KWh the system will produce over a year based on location/orientation of panels and output of inverters). For new construction, documentation demonstrating typical energy demands for similar uses, size buildings, and construction type may be considered.
a.
For systems located in the AE, AI, IG, IL, PF, and EX zoning districts the power consumption can be for onsite consumption as well as other offsite consumption associated with the business or agency within Yuba County as allowed by the CPUC, so long as offsite solar system is not located in a residential or mixed use district. In addition to the building permit requirements, a plan shall be submitted identifying location of all facilities intended to be offset by the small solar energy system, identify the location of the solar system(s) and a summary of the cumulative energy consumption of the facilities and the anticipated KWh the solar system will produce. Allow development standards for the solar system as identified below shall apply.
b.
Solar power generation facilities. The number of panels and kilowatt generation shall be determined through the use permit process. Any project not meeting the requirements of Subsection 11.32.270 (b)(1) will be considered a solar generation facility.
1.
Small solar power generation facilities. Facilities on sites less than ten acres in size outside the valley growth boundary may be processed as a minor conditional use permit in those districts that allow for such facilities.
(c)
Maximum height. Solar panels, as well as attachments to existing buildings and towers, shall comply with the maximum permitted height of the zoning district in which they are located.
(d)
Location.
(1)
In the RS zone freestanding personal solar energy system (not attached to an existing structure) shall only be located in the rear yard portion of any lot. This requirement does not apply if the solar energy system is attached to a building.
(2)
It is the property owner's responsibility to situate any solar collector so that a neighbor's trees or buildings—now or in the future, or any time of the year do not block access to the sun.
(e)
Maintenance. When a system reaches the end of its useful life and can no longer function, the owner of the system shall remove the system within 120 days of the day on which the system last functioned. The owner is solely responsible for removal of the system and all costs, financial or otherwise, of system removal. Failure to remove the system will be considered a nuisance and abated per Chapter 11.67, Enforcement and Abatement Procedures.
(a)
Purpose. The provisions of this Section are intended to encourage the use of renewable energy sources that are compatible with surrounding uses. Wind energy systems, including personal wind energy systems and wind power generation facilities, shall be designed, located, and operated consistent with the standards of this Section.
(b)
Minimum lot size. Wind energy systems are allowed on properties that are at least five acres in size within the valley growth boundary and any size parcel outside the valley growth boundary.
(c)
Maximum power generation. The size of personal wind energy systems shall not exceed the following:
(1)
Personal wind energy systems shall not exceed 20 kilowatts for residential uses and 50 kilowatts for non-residential uses unless the owner can demonstrate that the historical power consumption (energy use from the previous 24 months) is greater than the kilowatts allowed by use type. (See also personal power generation facility.) For systems located in the AE, PF, and EX zoning districts the power consumption can be for onsite consumption as well as other offsite consumption associated with the business or agency located within Yuba County as allowed by the CPUC, so long as offsite wind system is located in a zone district that allows for wind energy systems.
(2)
Those projects not meeting the requirements of Subsection 11.32.280 (c)(1) will be considered a wind power generation facility and maximum power generation shall be determined through a conditional use permit.
(d)
Height. The total height of wind energy systems is measured as the vertical distance from the ground level to the tip of a wind generator blade when the tip is at its highest point, and shall not exceed the following maximum height requirements:
(1)
Wind towers.
a.
On parcels less than five acres, the tower shall not exceed 35 feet.
b.
On parcels between five and ten acres, the tower height shall not exceed 80 feet.
c.
On parcels greater than ten acres, the tower height shall not exceed 100 feet unless additional height is provided through the use permit approval.
d.
Properties within 10,000 feet of an airport must comply with FAA height standards and regulations.
(2)
Attachments to existing buildings and towers.
a.
Building. A wind turbine(s) may be affixed to the building or the roof, provided that:
1.
The total height of the wind turbine is less than 20 feet above the highest point of the building.
2.
The base of the wind turbine cannot be seen from the road right-of-way.
b.
Towers. A wind turbine may be attached to an existing tower, provided that:
1.
The tower is designed to accommodate the wind turbine.
2.
The tower is in compliance with Subsection (f), Liability, of this Section.
(e)
Location.
(1)
Personal wind energy systems.
a.
Rear yard location. Personal wind energy systems shall only be located in the rear yard portion of any lot. The above locational limitation does not apply in the following situations:
1.
When located in AE, IG, SE, EX, RP, and TP districts and a rear-yard location would interfere with agricultural, mining, timber, or other permitted operations on the site.
2.
When the wind system is attached to a building the base of which cannot be viewed from any roadway.
b.
View maintenance. The system shall not substantially obstruct views of adjacent properties, and, where feasible, shall be placed below any major ridgeline.
(2)
Tower setbacks. Towers must be located:
a.
At least 1.2 times their height from any public road right-of-way.
b.
At least 1.2 times their height from any overhead utility lines, except those lines directly serving the subject property.
c.
At least 1.2 times their height from all property boundaries.
d.
Outside of the setback for the zoning district.
(3)
Guy wire anchors setbacks. If guy wires are utilized as part of the tower design, then the guy wire anchors shall be placed at least 30 feet from any abutting property boundaries and outside any front yard setback.
(4)
Turbines attached to buildings. The minimum distance a wind turbine may be from the property boundaries, if it is located on a building, must be 1.2 times the distance that is equal to the total height of the wind turbine from the ground.
(f)
Liability. The property owner shall be prepared to demonstrate proof of public liability insurance prior to issuance of permits and maintain said insurance during the entire useful life of the power generation facility.
(g)
Variances to personal wind energy systems. Deviations to the following development standards for personal wind energy systems may be granted upon approval of a minor use permit.
(1)
To locate wind turbines in the front or side yard of primary structure if pre-existing geography, vegetation or built environment would preclude the use of wind power in the rear of the primary structure.
(2)
To increase the permitted height of a tower or wind turbine.
(h)
Electrical interference. The wind energy system shall not cause any radio, television, microwave, or navigation interference. If a signal problem is identified, the applicant shall correct the problem within 90 days of being notified by the Yuba County Community Development and Services Agency of a problem.
(i)
Noise.
(1)
Personal wind energy systems. Decibel levels for the system shall not exceed 60 decibels as measured at the nearest property line, except during short-term events, such as utility outages and severe wind storms.
(2)
Wind power generation facilities. Wind power generations facilities shall not exceed the sound level (decibels) as specified in the conditional use permit and environmental document.
(j)
Color of towers. All towers shall be painted a non-contrasting gray, blue, white, green or similar color, minimizing their visibility, unless otherwise required by the Federal Aviation Administration (FAA). The applicant has the responsibility of determining the applicable FAA regulations and securing the necessary approvals prior to issuance of permits. Copies of FAA correspondence must be included as part of the application process for the wind energy systems.
(k)
Lighting. Except as required by law, a tower shall not be illuminated and lighting fixtures or signs shall not be attached to the tower. If lighting is required by the FAA regulations, white strobe lights shall not be permitted at night unless FAA permits no other alternatives. No lighting shall be constructed, placed or maintained in a manner that will constitute a nuisance to any surrounding property. Lighting shall in no way impair safe movement of traffic on any street or highway.
(l)
Advertising. No advertising is permitted anywhere on the facility, with the exception of signage being utilized for product identification and warnings.
(m)
Warnings.
(1)
A clearly visible warning sign concerning voltage must be placed at the base of all pad-mounted transformers and substations.
(2)
Visible, reflective, colored objects, such as flags, reflectors, or tape, shall be placed on the anchor points of guy wires and along the guy wires up to a height of ten feet from the ground.
(n)
Maintenance.
(1)
The design and location of any wind energy system shall ensure that all maintenance can be conducted from the installation site.
(2)
A wind energy system that is not functional shall be repaired by the owner or removed.
(3)
When a wind energy system reaches the end of its useful life and can no longer function, the owner of the system shall remove the system within 120 days of the day on which the system last functioned. The owner is solely responsible for removal of the system and all costs, financial or otherwise, of system removal. Failure to remove the system will be considered a nuisance and abated per Chapter 11.67, Enforcement and Abatement Procedures.
(4)
Any wind energy system that is not operated on a functional basis for a period of six consecutive months shall be deemed abandoned and shall be removed pursuant to paragraph (3) above.
(o)
Safety features.
(1)
The base of the tower must be designed so it is not climbable for a distance of 15 feet, as measured from the ground.
(2)
All access doors to wind turbines and electrical equipment shall be locked to prevent entry by non-authorized persons.
(3)
The wind energy system turbine shall be required to have an automatic over speed control to render the system inoperable when the winds are in excess of the speed the system is designed to accommodate.
(4)
The wind energy system shall be required to have a manually operable method to render the system inoperable in the event of a structural or mechanical failure of any part of the system.
(5)
Blade clearances.
a.
The clearance or the distance between the blades of a wind turbine and the blades of another wind turbine shall be no less than ten feet. Unless a lesser distance is provided by the manufacturer.
b.
The clearance or the distance between the blades of a wind turbine and the ground shall be no less than 15 feet.
(a)
General provisions.
(1)
Authority. This Section is adopted under the provisions of the Surface Mining and Reclamation Act of 1975 (Public Resources Code § 2710 et seq.) and the power of the County of Yuba to protect the public health, safety, and welfare of its residents.
(2)
Findings. The Board of Supervisors hereby finds and declares:
a.
The extraction of minerals is essential to the continued economic well-being of Yuba County and to the needs of society. The reclamation of mined lands is necessary to prevent or minimize adverse effects on the environment and to protect the public health and safety.
b.
The reclamation of mined lands as provided in this Section will permit the continued mining of minerals and will provide for the protection and subsequent beneficial use of the mined and reclaimed land.
c.
Surface mining takes place in diverse areas where the geologic, topographic, climatic, biological, and social conditions are significantly different and that reclamation operations and the specifications therefore may vary accordingly.
(3)
Intent. It is the intent of the Board to create and maintain an effective and comprehensive surface mining and reclamation policy with regulation of surface mining operations so as to ensure that:
a.
Adverse environmental effects are prevented or minimized and that mined lands are reclaimed to a usable condition which is readily adaptable for alternative land uses.
b.
The production and conservation of minerals are encouraged, while giving consideration to values relating to recreation, watershed, wildlife, range and forage, and aesthetic enjoyment.
c.
Residual hazards to the public health and safety are eliminated.
(4)
Exceptions. The provisions of this Section shall not apply to any of the following activities:
a.
Excavations or grading conducted for farming or the immediate excavation or grading of lands affected by a flood or natural disaster for the purpose of restoring those lands to their prior condition.
b.
Onsite excavation and onsite earthmoving activities that are an integral and necessary part of a construction project and that are undertaken to prepare a site for construction of structures, landscaping, or other land improvements associated with those structures, including the related excavation, grading, compaction, or the creation of fills, road cuts, and embankments, whether or not surplus materials are exported from the site, subject to all of the following conditions:
1.
All required permits for the construction, landscaping, or related land improvements have been approved by a public agency in accordance with applicable provisions of State law and locally adopted plans and ordinances, including, but not limited to, Public Resources Code Div. 13 (Public Resources Code § 21000 et seq.).
2.
The lead agency's approval of the construction project included consideration of the onsite excavation and onsite earthmoving activities pursuant to Public Resources Code Div. 13 (Public Resources Code § 21000 et seq.).
3.
The approved construction project is consistent with the general plan and zoning of the site.
4.
Surplus materials shall not be exported from the site unless and until actual construction work has commenced and shall cease if it is determined that construction activities have terminated, have been indefinitely suspended, or are no longer being actively pursued.
c.
Operation of a plant site used for mineral processing, including associated onsite structures, equipment, machines, tools, or other materials, including the onsite stockpiling and onsite recovery of mined materials, subject to all of the following conditions:
1.
The plant site is located on lands designated for industrial uses in the County general plan.
2.
The plant site is located on lands zoned industrial, or are contained within a zoning category intended exclusively for industrial activities by the County.
3.
None of the minerals being processed are being extracted on site.
4.
All reclamation work has been completed pursuant to the approved reclamation plan for any mineral extraction activities that occurred onsite after January 1, 1976.
d.
Prospecting for, or the extraction of, minerals for commercial purposes where the removal of overburden or mineral product totals less than 1,000 cubic yards in any one location, and the total surface area disturbed is less than one acre.
e.
Surface mining operations that are required by Federal law in order to protect a mining claim, if those operations are conducted solely for that purpose.
f.
Any other surface mining operations that the Board, as defined by Public Resources Code § 2001, determines to be of an infrequent nature and which involve only minor surface disturbances.
g.
Emergency excavations or grading conducted by the State Department of Water Resources, the Reclamation Board or County for the purpose of averting, alleviating, repairing, or restoring damage to property due to imminent or recent floods, disasters, or other emergencies.
h.
State Department of Water Resources Projects.
1.
Surface mining operations conducted on lands owned or leased, or upon which easements or rights-of-way have been obtained, by the State Department of Water Resources for the purpose of the State Water Resources Development System or flood control, and surface mining operations on lands owned or leased, or upon which easements or rights-of-way have been obtained, by the State Reclamation Board for the purpose of flood control, if the Department of Water Resources adopts, after submission to and consultation with, the Department of Conservation, a reclamation plan for lands affected by these activities, and those lands are reclaimed in conformance with the standards specified in regulations of the Board adopted pursuant to this Section. The Department of Water Resources shall provide an annual report to the Department of Conservation by the date specified by the State Department of Conservation on these mining activities.
2.
Nothing in this Subsection shall require the Department of Water Resources or the Reclamation Board to obtain a permit or secure approval of a reclamation plan from the County in order to conduct surface mining operations. Nothing in this Subsection shall preclude the bringing of an enforcement action pursuant to Public Resources Code § 2774.1, if it is determined that a surface mine operator, acting under contract with the Department of Water Resources or the Reclamation Board on lands other than those owned or leased, or upon which easements or rights-of-way have been obtained, by the Department of Water Resources or the Reclamation Board, is otherwise not in compliance with this Section.
i.
Excavations.
1.
Excavations or grading for the exclusive purpose of obtaining materials for roadbed construction and maintenance conducted in connection with timber operations or forest management on land owned by the same person or entity. This exemption is limited to excavation and grading that is conducted adjacent to timber operation or forest management roads and shall not apply to on-site excavation or grading that occurs within 100 feet of a class one watercourse or 75 feet of a class two watercourse, or to excavation for materials that are, or have been, sold for commercial purposes.
2.
This exemption shall be available only if slope stability and erosion are controlled in accordance with 14 CCR §§ 3704(f) and 3706(d) and, upon closure of the site, the person closing the site implements, where necessary, revegetation measures and post closure uses in consultation with the State Department of Forestry and Fire Protection.
j.
Excavations, grading, or other earthmoving activities in an oil or gas field that are integral to, and necessary for, ongoing operations for the extraction of oil or gas that comply with all of the following conditions:
1.
The operations are being conducted in accordance with Public Resources Code Div. 3 (Public Resources Code § 3000 et seq.).
2.
The operations are consistent with any general plan and zoning applicable to the site.
3.
The earthmoving activities are within oil or gas field properties under a common owner or operator.
4.
No excavated materials are sold for commercial purposes.
(5)
Limitations. No provision of this Section or any ruling, requirement, or policy of the State Board is a limitation on any of the following:
a.
The police power of the County or on the power of the County to declare, prohibit, and abate nuisances.
b.
The power of the District Attorney, at the request of the Board, or upon the District Attorney's motion, to bring an action in the name of the people of the State of California to enjoin any pollution or nuisance.
c.
The power of the County in the enforcement or administration of any provision of law which it is specifically authorized or required to enforce or administer.
d.
The right of any person to maintain at any time any appropriate action for relief against any private nuisance as defined in Civil Code Div. 4, Pt. 3 (Civil Code § 3479 et seq.) or for any other private relief.
e.
The power of the County to adopt policies, standards, or regulations imposing additional requirements on any person if the requirements do not prevent the person from complying with the provisions of this Section.
f.
The power of the County to regulate the use of buildings, structures, and land as between industry, business, residents, open space (including agriculture, recreation, the enjoyment of scenic beauty, and the use of natural resources), and other purposes.
(b)
Permits.
(1)
Permit required; issuance; standards for issuance. Except as provided in this Subsection, no person shall conduct surface mining operations in the County unless:
a.
An application for a permit is filed with the Planning Department on a form approved by the Director;
b.
A permit is approved by, the Planning Commission for the operation under this Section;
c.
A copy of an approved reclamation plan and financial assurances from the State shall be submitted to the Planning Department prior to the commencement of mining operations;
d.
All fees established by the Board to pay for the costs of processing and review of the application for the permit, the reclamation plan, and the financial assurances are paid.
(2)
Idle mine, interim management plan and appeal. Within 90 days of a surface mining operation becoming an idle mine, the operator shall submit to the Planning Department for Planning Commission review and approval, an interim management plan. The review and approval of an interim management plan shall not be considered a project within the meaning of CEQA. The approved interim management plan shall be considered an amendment to the surface mining operation's approved reclamation plan, for purposes of this Section. The interim management plan shall provide measures the operator will implement to maintain the site in compliance with this Section, including, but not limited to, all permit conditions.
a.
The interim management plan may remain in effect for a period not to exceed five years, at which time the Planning Commission shall do one of the following:
1.
Renew the interim management plan for another period not to exceed five years, if the Planning Commission finds that the surface mining operator has complied fully with the interim management plan; or,
2.
Require the surface mining operator to commence reclamation in accordance with its approved reclamation plan.
b.
In any event, required financial assurances shall remain in effect during the period the surface mining operation is an idle mine. If the surface mining operation is still idle after expiration of its interim management plan, the surface mining operation shall commence reclamation in accordance with its approved reclamation plan.
c.
Within 60 days of the receipt by the Planning Department of the interim management plan, or a longer period, not to exceed an additional 60 days, mutually agreed upon by the Director and the operator, the Planning Commission shall review and approve the plan in accordance with this Section, so long as the plan satisfies the above requirements, and so notify the operator in writing. Otherwise, the Planning Commission shall notify the operator in writing of any deficiencies in the plan. The operator shall have 30 days, or a longer period mutually agreed upon by the operator and the Planning Commission, to submit a revised plan.
d.
The Planning Commission shall approve or deny approval of the revised interim management plan within 60 days of receipt by the Planning Department. If the Planning Commission denies approval of the revised interim management plan, the operator may appeal that action to the Board, which shall schedule a public hearing within 45 days of the filing of the appeal with the Clerk of the Board, or any longer period mutually agreed upon by the operator and the Board. The provisions of Section 11.53.150 shall apply to such appeal.
(c)
Stay of enforcement action. Any enforcement action which may be brought against a person with an existing surface mining operation who has received Planning Commission approval of its financial assurances for reclamation prior to January 1, 1991, or a person who has filed an appeal with the Board or with the Planning Commission, shall be held in abeyance pending the resolution of an appeal pursuant to this Section.
(d)
Operation in 100-year floodplain and near state bridge. Whenever surface mining operations are proposed in the 100-year floodplain for any stream, as shown in zone A of Flood Insurance Rate Maps issued by the Federal Emergency Management Agency, and within one mile, upstream or downstream, of any State highway bridge, within ten days of the Planning Department's receipt of the application for the issuance or renewal of a permit to conduct the surface mining operations, the Planning Department shall notify the California Department of Transportation that the application has been received. The Planning Commission shall not issue or renew the permit until the Department of Transportation has submitted its comments or until 45 days from the date the application for the permit was submitted to the Department of Transportation, whichever occurs first.
(e)
Vested rights. No person who has obtained a vested right to conduct surface mining operations prior to January 1, 1976, shall be required to secure a permit pursuant to this Section as long as the vested right continues and as long as no substantial changes are made in the operation except in accordance with this Section. A person shall be deemed to have vested rights if, prior to January 1, 1976, the person has, in good faith and in reliance upon a permit or other authorization, if the permit or other authorization was required, diligently commenced surface mining operations and incurred substantial liabilities for work and materials necessary therefore. Expenses incurred in obtaining the enactment of an ordinance in relation to particular operation or the issuance of a permit shall not be deemed liabilities for work or materials. An official vested rights determination needs to be made by the approving authority pursuant to a public hearing.
(1)
Nothing in this Section shall be construed as requiring the filing of a reclamation plan for, or the reclamation of, mined lands on which surface mining operations were conducted prior to January 1, 1976, and not since disturbed.
(f)
Effect of vested rights on areas of significance. Neither the designation of an area of regional or statewide significance nor the adoption of any regulation for such an area shall in any way limit or modify the rights of any person to complete any development that has been authorized pursuant to Business and Professions Code Div. 4, Pt. 2 (Business and Professions Code § 11000 et seq.), pursuant to the Subdivision Map Act (Government Code § 64410 et seq.), or by a building permit or other authorization to commence development, upon which such person relies and has changed that person's position to that person's substantial detriment, and, which permit or authorization was issued prior to the designation of such area pursuant to Public Resources Code § 2790. If a developer has by his or her actions taken in reliance upon prior ordinances and regulations obtained vested or other legal rights that in law would have prevented the County from changing such ordinances and regulations in a way adverse to his or her interests, nothing in this Section authorizes the State Board to abridge those rights
(g)
Permit; recording. No permit granted pursuant to this Section shall be effective until the same has been recorded by the County Recorder for all affected parcels and proof thereof given to the Director. An approved surface mining permit shall be considered null and void unless recorded within 24 months of final approval or such other time period as may be set by conditions of approval. One extension of time, not to exceed 12 months, may be granted. Phased projects may be recorded in phases.
(h)
Permit; notification to assessor. Subsequent to January 1, 1979, the Director shall notify the Assessor of Yuba County of any permits issued pursuant to this Section.
(i)
Permits; copies for board of supervisors. Subsequent to January 1,1979, the Director shall forward a copy of any permits issued pursuant to this Section to the Clerk of the Board of Supervisors. The Clerk shall maintain a permanent file of such permits.
(j)
Permit; revocation and modification. Upon 15 days ordinary mail notice which provides the time and place of public hearing and the reason(s) for revoking or modifying a permit and after public hearing, a permit granted or approved under this Section may be revoked or modified by the Planning Commission, in the event it finds a violation of the terms and conditions of the permit, reclamation plan, and/or financial assurances or for other good cause consistent with the purposes and objectives of this Section.
(k)
Noticed public hearing, action, and findings. Any hearing before the Planning Commission or the Board on a matter arising under this Section shall be after the giving of a public notice by ordinary mail no less than 15 days prior to the hearing to all residents and property owners within 500 feet of the parcel or parcels which are the subject of the hearing. The action and findings of the Planning Commission and the Board shall be set forth in writing.
(a)
Purpose. This article provides standards and procedures to regulate the development, siting, installation, and operation of wireless communications antennas and related facilities consistent with the applicable requirements of state and federal law. The regulations are intended to provide for the appropriate development of wireless communication facilities within the County to meet the needs of residents, business-owners, and visitors while protecting public health and safety and preventing visual blight and degradation of the community's aesthetic character.
(b)
Applicability and exemptions. The requirements of this article apply to all wireless communication facilities that transmit and/or receive electromagnetic signals, including but not limited to personal communications services (i.e. cellular, paging, data, and internet) and radio and television broadcast facilities. The requirements apply to communication facilities that are the primary use of a property and those that are accessory facilities, except that the following accessory facilities are exempt:
(1)
Licensed amateur (ham) radio and citizen band operations that do not exceed the maximum allowable building height for the zone district in which the antenna is located and are ancillary to a primary use on the same site.
(2)
Hand-held, mobile, marine, and portable radio transmitters and/or receivers.
(3)
Emergency services radio.
(4)
Carrier on wheels or cell on wheels (COW) are radio and television mobile broadcast facilities and are exempt when placed for a period of not more than 72 hours at any location unless an emergency or a disaster is declared by the Board of Supervisors
(5)
Antennas and equipment cabinets or rooms completely located inside of permitted structures.
(6)
A single ground- or building-mounted receive-only radio, internet or television antenna not exceeding the maximum height permitted by this Code, including any mast, or a receive-only radio, internet or television satellite dish antenna.
(7)
Any antenna or wireless communications facility that is exempt from local regulation pursuant to the rules and regulations of the Federal Communications Commission (FCC) or a permit issued by the California Public Utilities Commission (CPUC). The owner or operator of such facility shall provide the Planning Director with a copy of a current FCC or CPUC permit or a copy of applicable FCC regulations prior to its installation.
(8)
Ordinary maintenance of existing wireless facilities and wireless support structures.
(c)
Application requirements. Where approval of a use permit or zoning clearance is required, an applicant shall file a written application with the Planning Director pursuant to the application procedures in Chapter 11.53, Common Procedures, accompanied by the required fee as established in the County's fee schedule. Applications shall be submitted pursuant to application requirement handouts maintained by the County and as amended from time to time.
(1)
Zoning clearance required. The following require approval of a zoning clearance prior to installation or commencement of use:
a.
Eligible facilities requests, collocations, or removal or replacement of transmission equipment on an existing wireless tower or base station that does not result in a substantial modification as defined in this Code.
b.
COWs placed for a period greater than 72 hours (not part of a declared emergency or disaster) but not more than 120 days at any location.
c.
Wireless facilities placed on existing utility poles that do not increase the height of the pole by more than 15 feet and all equipment is located within the utility easement.
d.
New wireless support structures that are less than 150 feet in height, in any industrial or agricultural district or within the timber production or extractive zone districts. When a new facility is proposed to be located within an airport compatibility safety zone; the requirements of the airport overlay district shall apply. Those safety zones that conditionally allow for communication towers shall be processed as an administrative use permit (AUP) if exempt from CEQA and a minor conditional use permit if a CEQA document is required.
(2)
Administrative review and approval. The following require approval of an administrative use permit prior to installation or commencement of use:
a.
New wireless support structures greater than 150 feet in height, in any industrial or agricultural district or within the timber production or extractive zone districts.
b.
Camouflage wireless facilities that are 75 feet or less in height, in any non-residential district or rural community district.
c.
Substantial modifications as defined by this Code.
d.
COWs that that will be placed at a location for greater than 120 days.
(3)
Minor conditional use permit review and approval. The following require approval of a minor conditional use permit:
a.
Camouflage wireless facilities that are 60 feet or less in height, in any residential district.
b.
Camouflage wireless facilities that are greater than 75 feet in height in any non-residential or rural community districts.
c.
New wireless support structures less than 125 feet in height in any special purpose district.
(4)
Conditional use permit review and approval. The following require approval of a conditional use permit:
a.
Camouflage wireless facilities that are greater than 60 feet in height, in any residential district.
b.
New wireless support structures greater than 125 feet in height in any special purpose district.
c.
New wireless support structures in residential, rural community, or commercial and mixed-use districts or resource preservation and recreation, planned development or planning reserve zone districts.
(d)
Standards. All wireless communication facilities shall be located, developed, and operated in compliance with all of the following standards and with applicable standards of the zoning district in which they are located.
(1)
Location and siting.
a.
Within the valley growth boundary and rural communities, no new freestanding facility, including a tower, lattice tower, or monopole, shall be located within 1,000 feet of another freestanding facility, unless appropriate camouflage techniques have been used to minimize the visual impact of the facility to the extent feasible, or when it can be demonstrated that co-location on an existing pole or tower or camouflage techniques are not feasible.
b.
Countywide: All wireless communication facilities shall meet the building setback standards of the district which they are to be located unless due to topography or other site constraints a waiver to the setback is approved by the decision-making authority.
c.
Countywide: When feasible, providers of personal wireless services shall co-locate facilities in order to reduce adverse visual impacts. The decision-making authority may require co-location or multiple-user wireless communication facilities for new facilities based on a determination that it is feasible and consistent with the purposes and requirements of this article.
1.
When determined to be feasible and consistent with the purposes and requirements of this article, the applicant shall make unused space available for future co-location of other wireless communication facilities, including space for different operators providing similar, competing services.
(2)
Support structures. Support structures for wireless communication facilities shall be any of the following:
a.
A single pole (monopole) sunk into the ground and/or attached to a foundation. Any new monopole should be constructed to allow for co-location of at least one other similar wireless communications provider.
b.
A monopole mounted on a trailer or a portable foundation if the use is for a temporary wireless communications facility (COW).
c.
An existing non-residential building.
d.
An existing structure other than a building, including, but not limited to, light poles, electric utility poles, water towers, smokestacks, billboards, lattice towers, and flag poles. This term includes an electric utility pole erected to replace an existing electric utility pole, if the replacement pole will serve both electric and wireless communications functions, and if the replacement pole is substantially equivalent to the predecessor pole in placement, height, diameter and profile.
e.
An alternative tower structure such as a clock tower, steeple, functioning security light pole, functioning recreational light pole, or any similar alternative-design support structure that conceals or camouflages the wireless telecommunication facility. The term "functioning" as used herein means the light pole serves a useful and appropriate lighting function as well as a wireless communications function.
f.
Existing publicly-owned and operated monopole or a lattice tower.
(3)
Height requirements.
a.
Freestanding antenna or monopole. The height of a freestanding antenna or monopole should be limited to what is necessary to provide adequate service and coverage while still providing opportunities for co-location or future expansion.
b.
Building-mounted facilities. Building-mounted wireless telecommunication facilities shall not exceed a height of 15 feet above the height limit of the district or 15 feet above the existing height of the legally established building or structure that is located on, whichever is higher, measured from the top of the facility to the point of attachment to the building.
c.
Facilities mounted on structures. Wireless telecommunication facilities mounted on an existing structure shall not exceed the height of the existing structure unless camouflaged as part of the structure design, except antennas may extend up to 15 feet above the height of an electric utility pole.
(4)
Design and screening. Wireless telecommunication facility structures and equipment shall be located, designed and screened to blend with the existing natural or built surroundings, as well as any existing support structures, so as to reduce visual impacts to the extent feasible.
a.
Screening of base stations. Within the valley growth boundary with the exception of industrial zone districts, equipment cabinets and buildings, and associated equipment such as air conditioning units and emergency generators, shall be screened from view by a wall or solid fence and landscaping, as approved by the County. Any wall shall be architecturally compatible with the building or immediate surrounding area. Equipment cabinets and related facilities located in industrial zone districts and outside the valley growth boundary shall be fenced or screened with landscaping when located within 100 feet of a public right-of-way. Existing terrain and vegetation may be counted towards screening requirements.
b.
Lighting. Artificial lighting of a wireless telecommunication facility, including its components, is prohibited, unless required by the Federal Aviation Administration. A motion-sensor light may be used for security purposes if the beam is directed downwards, shielded from adjacent properties, and kept off except when personnel are present at night.
c.
Advertising. No advertising shall be placed on wireless telecommunication facilities, equipment cabinets, or associated structures.
(5)
Security and maintenance requirements. All facilities shall be designed to minimize opportunities for unauthorized access, climbing, vandalism, graffiti, and other conditions that would result in hazardous conditions, visual blight, or attractive nuisances.
a.
Fencing. Security fencing and walls shall not exceed ten feet in height. Chain link fencing is prohibited within the valley growth boundary with the exception of industrial zone districts. In industrial zone districts and outside the valley growth boundary, no chain link fences shall be visible from public view (typically within 100 feet of a right-of-way unless screened by existing terrain or vegetation).
b.
Maintenance. The permittee shall be responsible for maintaining the site and facilities free from graffiti. Where landscaping is provided it shall be irrigated and maintained for the life of the project.
c.
Removal of facilities. The operator of a wireless communication facility must remove all unused or abandoned equipment, antennas, poles or towers within 30 days of abandonment. The facility shall be deemed abandoned if it has not been operational for a consecutive 90-day period.
(6)
Radio frequency standards; noise.
a.
Radio frequency. Wireless telecommunication facilities shall comply with federal standards for radio frequency emissions and interference. Failure to meet federal standards may result in termination or modification of the permit.
b.
Noise. Wireless telecommunication facilities and any related equipment, including backup generators and air conditioning units, shall not generate continuous noise in excess of the noise standards established in Yuba County Code Chapter 8.20, Noise Regulations. Backup generators shall only be operated during power outages and for testing and maintenance purposes. Testing and maintenance shall only take place between the hours of 7:00 a.m. and 10:00 p.m.
(7)
Fire prevention. All wireless telecommunication facilities shall be designed and operated in a manner that will minimize the risk of igniting a fire or intensifying one that otherwise occurs.
(8)
Surety bond. As a condition of approval, an applicant for a building permit to erect or install a wireless telecommunication facility shall be required to post a cash or surety bond in a form and amount acceptable to the County to cover removal costs of the facility in the event that its use is abandoned or the approval is otherwise terminated.
(9)
Required findings.
a.
General findings. The decision-making authority may approve or approve with conditions any use permit or zoning clearance required under this article after making the following findings in addition to any other findings required by this Code:
1.
The proposed use conforms with the specific purposes of this article and any special standards applicable to the proposed facility;
2.
The proposed communication facility is a co-location or camouflage facility or the applicant has provided reasonable justification to demonstrate that a co-location or camouflage facility is not feasible and a new ground-mounted antenna, monopole, or lattice tower is needed;
3.
The proposed site and wireless communication facility has been designed to achieve compatibility with the surrounding community and limit environmental impacts to the extent reasonably feasible in accordance with the provisions of this Chapter.
b.
Additional findings for facilities in a residential districts and public facilities. To locate a facility in a residential district where it is readily visible from the habitable area of a dwelling unit within 300 feet, or at any location where it is readily visible from a public right-of-way, public park, or other public recreation or cultural facility, the decision-making authority shall find that:
1.
It is not feasible to provide the service at another location; or to incorporate additional measures such as a decrease in height, increase in setback, change in design, relocation relative to other structures or natural features, that would further reduce its visibility; and
2.
The proposed facility provides an important link in applicant's service area build-out and is necessary to provide personal wireless services to County residents.
c.
Additional findings for any other exception to standards. The decision-making authority may waive or modify requirements of this article upon finding that strict compliance would result in noncompliance with applicable federal or State law.
(a)
Transitional and supportive housing constitute a residential use and are subject only to those restrictions that apply to other residential uses of the same type in the same zoning district. Supportive housing is also permitted by right in nonresidential zones permitting multifamily uses, if the proposed housing development satisfies the following requirements:
(1)
Units within the development shall be subject to a recorded affordability restriction for 55 years.
(2)
All units, excluding managers' units, within the development shall be dedicated to lower-income households, provided they are receiving public funding to ensure affordability of the housing to lower-income Californians.
(3)
At least 25 percent of the units in the development, or 12 units, whichever is greater, shall be restricted to residents in supportive housing who meet criteria of the target population. If the development consists of fewer than 12 units, 100 percent of the units (excluding managers' units) in the development shall be restricted to residents in supportive housing who meet criteria of the target population.
(4)
Per Section 65652 of the California Government Code, the developer shall provide the County with a plan for providing supportive services, and include documentation demonstrating that supportive services will be provided on site to residents in the project, and shall include all of the following information:
a.
The name of the proposed entity or entities that will provide supportive services.
b.
The proposed funding source or sources for the provided on-site supportive services.
c.
Proposed staffing levels.
(5)
Nonresidential floor area shall be used for on-site supportive services in the following amounts:
a.
For a development with 20 or fewer total units, at least 90 square feet shall be provided for on-site supportive services.
b.
For a development with more than 20 units, at least three percent of the total nonresidential floor area shall be provided for on-site supportive services that are limited to tenant use, including, but not limited to, community rooms, case management offices, computer rooms, and community kitchens.
(6)
Units within the development, excluding managers' units, shall include at least one bathroom and a kitchen or other cooking facilities, including, at minimum, a stovetop, a sink, and a refrigerator.
(7)
If the developer replaces any dwelling units on the site of the supportive housing development, the units subject to these provisions shall be replaced as specified in subdivision (c) of Government Code § 65915.
This Section establishes standards for certain temporary uses and special events that are intended to be of limited duration of time and that will not permanently alter the character or physical facilities of the site where they occur. This Section also provides standards for longer term special events and event centers.
(1)
Arborist office. On-site temporary arborist offices are permitted in conjunction with an approved zoning clearance during the period of arborist work. The office shall be shut down immediately upon completion of arborist project.
(2)
Construction office trailers. On-site temporary construction offices are permitted in conjunction with an approved construction project during the period of construction with a building permit. The trailer shall be removed immediately upon completion of the construction project, or the expiration of the building permit.
(3)
Construction yards. Contractors' construction yard(s) are permitted in conjunction with an approved construction project. The construction yard shall be removed immediately upon completion of the construction project, or the expiration of the building permit. Off-site construction yards for capital improvement projects require approval of a zoning clearance; all other off-site construction yards require approval of a temporary use permit. No zoning clearance is required for on-site contractors 'construction yards. A performance bond for removal and site clean-up may be required as determined by the Community Development and Services Agency Director.
(4)
Garage sales. Garage sales of personal property conducted by a resident of the premises may be conducted in accordance with the following standards:
a.
No permit or clearance required. Garage sales are allowed by right, and require no zoning clearance, if they meet all of the following standards:
1.
Garage sales shall be conducted by a resident of the premises and goods shall be limited to personal property.
2.
Items offered for sale shall be limited to the personal property not acquired for resale, and either owned by the resident(s) of the dwelling unit where the sale is to be conducted or by another person participating in the sale with the resident.
3.
No more than four garage sales shall be conducted on a site in any calendar year.
4.
No single sale event shall be conducted for longer than three consecutive days.
5.
Garage sales may be conducted during daylight hours.
b.
Garage sales that exceed these thresholds shall be considered temporary sales events.
(5)
Subdivision-related temporary uses (model home complexes). Certain temporary structures and uses associated with an approved subdivision are allowed with a temporary use permit.
a.
Permitted uses. The following uses and structures may be allowed with a temporary use permit, subject to the procedures of Chapter 11.58, Temporary Use Permits, in connection with a subdivision of 20 or more lots with an approved tentative map.
1.
Up to six model homes;
2.
A temporary building used as a contractor's office; and
3.
A real estate sales office in connection with marketing of a subdivision.
b.
Standards.
1.
All such uses must be located within the subdivision.
2.
The uses are allowed in connection with a subdivision of 20 lots or more with an approved tentative map.
3.
A real estate sales office may be located within a new residence that is part of the development or within a temporary building.
4.
Model homes may be used in conjunction with an approved temporary tract office but not a general real estate business.
5.
At the end of the approved time period, structures shall either be removed or restored for a use permitted in the zone where they are located.
c.
Time limits and extensions.
1.
The temporary structures and uses may be granted for an initial period of no more than two years.
2.
The zoning administrator may renew said permits for up to additional one-year periods upon written application at least 30 days prior to expiration.
(6)
Temporary housing. Temporary housing for family members or care givers may be granted in certain zones, as specified in Division II, Base and Overlay Districts, in order to prevent the dislocation of families and to allow for in-home care of certain individuals by family members where such care is needed.
a.
Temporary use permit required. Establishment of a temporary housing requires approval of a temporary use permit, pursuant to the procedures of Chapter 11.58, Temporary Use Permits.
b.
Standards.
1.
The lot on which a temporary permit for a temporary housing is granted must meet the same setbacks as that required for the primary residence. At least ten feet of separation shall be provided between the primary residence and temporary housing.
2.
The project must comply with all other statutes and ordinances relating to health and building codes. Due to the temporary nature of the housing, capital facility fees shall not be collected.
3.
The occupants of the temporary housing shall be limited to: relatives of the property owner; a licensed caregiver needed to care for a member of the primary household; or a caretaker of the property.
4.
Conditions/recorded agreement. The applicant shall sign an agreement that at the conclusion of the permit or upon violation thereof, the temporary housing shall be removed from the property or the County may be authorized to remove the residence and record a lien on the property for the cost thereof. Such agreement may be recorded.
c.
Time limits and extensions.
1.
A temporary use permit to allow temporary housing shall be granted for no more than a two-year period. The applicant may apply for additional two-year extensions, not to exceed a total of six years unless approved by the CDSA Director.
2.
A temporary use permit to allow a temporary housing unit shall expire if the temporary residence is removed from the property or if the residence is no longer occupied by a qualifying relative or the TUP has not been renewed.
(7)
Temporary emergency shelters. Temporary emergency shelters, as defined in Chapter 11.72, Use Classifications, are permitted according to the following standards. (For permanent shelters, see Section 11.32.100, Emergency Shelters.)
a.
Zoning clearance. Temporary emergency shelters in any zoning district are permitted with a zoning clearance if they meet all of the following standards:
1.
The shelter will operate for no more than 26 days in any 90-day period.
2.
No other temporary emergency shelter may be operated within 500 feet during the same 90-day period.
b.
No permit or clearance required. Facilities providing lodging and other services during a declared emergency are exempt from the above requirement for a CDSA Clearance.
(8)
Temporary sales events. Temporary sales that meet the standards of this Subsection are permitted for up to seven days within a 90 day period. Sales events for a longer period or that exceed the standards may be allowed with a temporary use permit.
a.
General requirements. The following requirements apply to all temporary sales events:
1.
Location. Sales events are limited to non-residential districts. The sales event must be conducted solely on private property and not encroach within the public right-of-way or occupy needed parking at the time of the event.
2.
Location of the displayed merchandise must not disrupt the normal circulation of the site, nor encroach upon driveways, pedestrian walkways, or required landscaped areas, or obstruct sight distances or otherwise create hazards for vehicle or pedestrian traffic.
3.
Events shall comply with Chapter 8.20, Noise Regulations, of the County Code.
b.
Seasonal sales. The annual sales of Christmas trees, pumpkins, fireworks and similar items on private property is permitted, provided that the following standards are met:
1.
Seasonal sales shall comply with the general requirements listed in Section 11.32.320(7)a.
2.
Time period. Christmas tree sales are permitted from Thanksgiving Day through December 31st. Seasonal sales associated with other holidays are permitted up to a month preceding and one week following the holiday.
3.
Goods, signs and temporary structures. All trees, pumpkins, or other items for sale, as well as signs and temporary structures, shall be removed and the site shall be returned to its previous condition within five days of the end of sales. A clean-up deposit may be required.
4.
Seasonal sales on undeveloped properties require approval of a zoning clearance and property owner's authorization.
c.
Longer-term sales events. Other special sales events and displays that exceed the time limits of this Section may be allowed with the approval of a temporary use permit, pursuant to the procedures of Chapter 11.58, Temporary Use Permits and subject to the following standards:
1.
Location. Events are limited to non-residential districts.
2.
Existing business. Temporary outdoor sales shall be part of an existing business on the same site.
3.
Maximum duration. The duration of such special sales events shall be established by the temporary use permit but in no case shall exceed a period of three months.
4.
Signs. Outdoor uses may include the addition of one nonpermanent sign up to a maximum size of ten square feet in area, subject to Chapter 11.27, Signs.
5.
Existing parking. The available parking shall not be reduced to less than 75 percent of the minimum number of spaces required by Chapter 11.25, Parking and Loading.
(9)
Fairs, festivals, and other special events within the valley growth boundary. Fairs, festivals, and other special events that are general open to the general public (e.g., craft fairs, art shows, cultural festivals, carnivals, recreational events) located on private property may be permitted with a zoning clearance, subject to the following standards:
a.
Time limit. Special events under this Subsection may not operate for more than three consecutive or ten total days per year. A longer period may be requested with a temporary use permit or minor use permit pursuant to thresholds in Section 11.32.320, Temporary Uses and Special Events, Sections 1.2 and 1.3 and Table 11.32.320.
b.
Hours of operation. When located adjacent to a residential district, the hours of such special events shall be limited to between 8:00 a.m. to 10:00 p.m.
c.
Location. Events are limited to areas within nonresidential districts, or on land owned by a school, church or other public or quasi-public facility.
d.
Site circulation. Temporary events shall not block accessible pathways or parking spaces, public rights-of-way, sidewalks, or impede on-site circulation and parking for either the event or any businesses that are operating on the site, subject to approval by the Public Works Director and the local fire district.
e.
Noise. Events shall comply with Chapter 8.20, Noise Regulations, of the County Code.
f.
Other permits. Special events shall obtain any and all permits required by other agencies or other sections of the County Code (i.e. food vendor permits from Environmental Health).
(10)
Special events outside the valley growth boundary or on lots with permitted agricultural uses. Special events on property outside the valley growth boundary or on lots with agricultural uses are subject to the following standards:
a.
Special events—Permitted. The following types of temporary uses may be conducted without a temporary use permit. Other permits, such as zoning clearances, may be required.
1.
No more than five events or ten total days per year per site shall occur per calendar year.
2.
The capacity of each event shall not exceed 100 persons at one time and all parking is contained onsite.
3.
Events shall be limited in duration to no more than three consecutive days (ten days per year total). Outdoor events shall only occur between the hours of 8:00 a.m. to 10:00 p.m.
4.
Temporary sanitation facilities shall be provided to handle the additional occupant loading.
5.
No permanent structures shall be constructed or grading activities directly related to the special event shall be permitted.
6.
Outdoor music that is amplified shall be limited to 8:00 a.m. to 9:00 p.m. and shall not exceed 45 decibels measured at the property line.
b.
Special events requiring a temporary use permit. Special events that exceed the thresholds of Subsection 11.32.320(10)a., Special Events—Permitted, above, may be allowed with a temporary use permit, subject to the following provisions:
1.
Such events shall be limited to no more than 12 events or 24 days per site per calendar year.
2.
The capacity of each event shall not exceed 250 persons at any one time and all parking is contained onsite and reviewed and approved by the local fire department.
3.
Events shall be limited in duration to no more than three consecutive days.
4.
Parking and assembly areas shall be located in such a manner as to avoid impacts to sensitive habitat.
5.
Temporary sanitation facilities shall be provided, as required by the Environmental Health Director.
6.
Any outdoor music shall meet County noise standards. Amplified music or amplified speech shall comply with Chapter 8.20, Noise Regulations, of the County Code. For any events with amplified sound, occurring between 7:00 p.m. and 9:00 p.m., a noise analysis shall be submitted to the Planning Department demonstrating that the noise standards will not be exceeded. No outdoor music will be allowed after 9:00 p.m. This Subsection does not permit concerts or other live, outdoor amplified music where the music is the primary attraction. (See Chapter 8.70, Outdoor Music Festivals, for events involving outdoor music for more than 200 attendees.)
c.
Special events requiring a minor use permit (special event centers). The following uses require a minor use permit:
1.
Temporary campgrounds associated with a special event exceeding 48 hours in duration.
2.
Concerts or other live, outdoor amplified music where the music is the primary attraction. (See also Chapter 8.70, Outdoor Music Festivals, of the County Code.)
3.
Required findings. In order to approve a minor use permit for a special event center, the Development Review Committee shall make the following findings in addition to the findings for approval of a use permit in Section 11.57.060.
i.
The proposed use does not detract from or diminish the on-site crop production uses.
ii.
There is no adverse effect on agricultural production or public health and safety on surrounding properties.
(11)
Other temporary uses. If a temporary use is proposed that is not listed or addressed in this Section or another section of this Code, the Planning Director shall determine the most similar temporary use, and the proposed use will be subject to the same standards and procedures as the most similar use.
For purposes of this Section, the regulations associated with wineries also pertain to olive oil, micro-brewery and micro-distillery production facilities. Wineries and tasting rooms shall be developed, located and operated in conformance with the following standards:
(1)
Wineries. The growing and harvesting of grapes, olives, fruit, hops and other products suitable for processing and bottling of wine, olive oils, beer and distilled beverages or products.
a.
Milling, pressing, processing, and bottling of grapes, olives, beer and distilled beverages is principally permitted in agricultural districts, in the rural residential zone district up to 5,000 cases per year (case = case of wine or equivalent in olive oil, beer or distilled beverage), and permitted through approval of an administrative use permit in the residential estate district.
b.
Processing of more than 5,000 cases per year shall be subject to approval of a minor conditional use permit within the rural residential and residential estate districts.
c.
Incidental uses. Tasting rooms pursuant to Section 11.32.330.B; retail sales, special events, lodging, and agricultural recreation and entertainment are permitted as incidental uses to a permitted winery in accordance with regulations listed under Section 11.32.230, Ranch Marketing and Section 11.32.320, Temporary Uses and Special Events.
(2)
Tasting rooms.
a.
Accessory use. Tasting facilities shall be clearly related to the winery with the focus of the tasting facilities on the marketing and sale of the products grown and/or processed on the site or neighboring properties under the same ownership and/or lease.
b.
Maximum size. Tasting rooms are subject to the size limits listed in Table 11.32.330(2) below:
c.
Complimentary food items for on-site consumption. Complimentary food items including but not limited to fruit slices, cheese, and crackers, may be offered to customers along with tastings, provided that:
1.
Food items are not advertised on signage; and
2.
Such food is prepared in a facility approved by the Yuba County Department of Environmental Health and handled in accordance with the California Health and Safety Code.
d.
Merchandise and prepackaged food sales. Tasting rooms may engage in the retail sale of the following items, provided that the aggregate area for the display of all such items occupies no more than 15 percent of the area of the tasting room.
1.
Product-related merchandise. Incidental merchandise relating to the use and consumption of the product that is the subject of the tasting room, including but not limited to wine glasses, corkscrews, accessory clothing, key chains, and pens.
2.
Value-added agricultural products. Packaged food for off-site consumption, including but not limited to jam, jellies, olives, and olive oil, provided that:
i.
The packaged food is produced from agricultural products grown on lots or parcels of land owned or leased by the holder of a Type 02 license issued by the California State Department of Beverage Control;
ii.
The associated producer's logo is permanently and prominently affixed to all food sold; and
iii.
The packaged food is prepared and offered in accordance with any and all regulations and/or requirements of the applicable government agencies regarding the preparation, licensing, and inspection of such packaged food.
3.
Pre-packaged foods. Prepackaged food items intended to complement the product that is the subject of the tasting room, including but not limited to crackers, for off-site consumption. These shall be non-potentially hazardous prepackaged food products from an approved source.
e.
Picnic areas. Picnic areas may be provided but shall be subordinate to the tasting room.
f.
Utilities. Sanitary facilities and potable water shall be provided pursuant to applicable codes.
REGULATIONS APPLYING TO SOME OR ALL DISTRICTS
The purpose of this Chapter is to prescribe development and site regulations that apply, except where specifically stated, to development in all districts. These standards will be used in conjunction with the standards for each zoning district located in Division II, Zoning and Overlay Districts. In any case of conflict, the standards specific to the zoning district will override these regulations.
(a)
Generally. Where a lot is greater than one acre in size and is divided by a district boundary, the regulations applicable to each district shall be applied to the area within the district, and no use, other than parking serving a principal use on the site, shall be located in a district in which it is not a permitted or conditionally permitted use. For lots less than one acre in size the regulations in Section 11.04.040.C.2, Zoning Boundary Interpretations shall apply.
(b)
Accessory facilities. Accessory landscaping, fences, screening or retaining walls, and usable open space may be located on the lot without regard for zone boundaries.
(c)
Density and floor area. The maximum permitted number of living units or maximum floor area, if any, shall be calculated according to the lot area within each zoning district and the corresponding density ratio and floor area ratio for the district. The resulting maximum permitted number of living units or amount of floor area may be distributed on the lot without regard for district boundaries, as long as all portions of the project comply with the development standards of the district in which they are located and all other provisions of this Section.
(d)
Minimum lot area, width, and frontage. The minimum lot area, width, and frontage requirements of the zoning district that covers the greatest portion of the lot area shall apply to the entire lot. If the lot area is divided equally between two or more zone districts, the requirements of the district with greater minimum lot area, width, or frontage shall apply to the entire lot.
(e)
Exceptions. If more than 60 percent of a lot is located in one zoning district, a qualified applicant may apply for and the Planning Commission may consider a Conditional Use Permit in order to request exceptions to the provisions of this Section (e.g., to apply the standards of one of the districts to a greater area of the site).
(a)
Residential accessory structures. Residential accessory structures include structures that are customarily related to a residence, including garages, greenhouses, storage sheds, studios, play equipment, swimming pools, spas, workshops, detached covered decks and patios, detached uncovered decks and patios 18 inches in height or greater, and similar structures. Regulations for residential second units are located in Section 11.32.030, Accessory Dwelling Units.
(b)
Non-residential accessory structures. In addition to the primary structures associated with permitted uses, each use classification may include accessory structures which are necessarily and customarily associated with, and are appropriate, incidental, and subordinate to, such primary structures and uses. It shall be the responsibility of the Planning Director to determine if a proposed accessory structure is necessarily and customarily associated with, and is appropriate, incidental, and subordinate to the primary structure or use, based on the Planning Director's evaluation of whether the proposed accessory structure is necessary or customarily associated with the use for which the development was constructed. Determinations by the Planning Director shall be subject to appeal pursuant to Section 11.53.150, Appeals and Calls for Review. All accessory structures shall be located in compliance with all other applicable requirements of the zone district in which they are located and any other permits required (e.g. design review permit in commercial districts).
(c)
Development standards. Accessory structures shall be developed in accordance with the following standards:
(1)
Relation to existing structures. A detached accessory building may only be constructed on a lot on which there is a permitted main building or use to which the accessory building is related. However, an accessory building may be constructed prior to a permitted main building and used for not more than one year in connection with the construction of the main building provided that a building permit is obtained for the entire project, including the accessory building, prior to the start of any construction and a compliance bond has been obtained. The accessory structure will not be issued a building permit final until final occupancy has been issued for the main building.
(2)
Size. Accessory structures count towards the maximum lot coverage or floor area ratio (FAR) permitted on a site. Within the valley growth boundary, excluding agricultural uses, no single accessory structures shall exceed the ground floor area of the primary building.
(3)
Levee setback. Structures located in proximity to a levee shall meet the requirements of Section 11.23.030.D, Setbacks Adjacent to a Levee.
(4)
Setbacks. Accessory structures shall meet the setback requirements established by the zoned district they are located in.
a.
Setback exemptions: Uncovered decks and patios under 18 inches in height; one accessory structure less than eight feet in height and less than 120 square feet in area. Pool and spas shall meet setback requirements of Section 11.19.100 Swimming Pools and Spas. Fences shall meet setback requirements of Section 11.19.040 Fences and Walls. Within the valley growth boundary no accessory structures shall be permitted within the front yard setback area with the exception of decks, patios, and fences (see Section 11.19.040 Fences and Walls).
(a)
Applicability. The standards of this Section apply to fences, freestanding walls, dense hedges, and similar structures. Walls and fences, depending on their height, may require approval of a building permit. Walls and fences within non-residential districts (excluding natural resource and agricultural districts) are further regulated by the County's design guidelines.
(b)
Maximum height. Fences, walls, hedges, and similar structures shall be limited to the maximum heights stated below. Fences and walls depending on height and construction style may require a building permit.
(1)
Front yards and street side yards. Within the valley growth boundary the required front and corner side yards, or along the exterior boundaries of such yards; fences, hedges, and freestanding walls may not exceed a height of three feet. Fences may be placed at the back of the sidewalk if they achieve a height of four feet provided that the top foot or entire fence height is of open or lattice-type design and achieves at least 25 percent transparency. For non-residential uses a taller fence or wall height may be permitted when a business need can be demonstrated to the Planning Director to allow additional height through a waiver.
a.
Outside the front and street side yard area (setback is established by zone district) fences, hedges, and walls up to eight feet in height may be permitted. Fences taller than eight feet in height may be permitted for noise attenuation as determined by a noise analysis or in non-residential zones when a demonstrated security need can be demonstrated to the Planning Director through a waiver.
b.
Within the residential districts of the valley growth boundary, fences up to eight feet in height may be placed five feet from the back of the sidewalk or ten feet from the back of the right-of-way line from the street side of a corner lot.
Outside the valley growth boundary or on agricultural properties within the valley growth boundary, fencing along the front and street side yard property lines may be open "agricultural style" fencing up to six feet in height unless a need can be made to the Planning Director to allow additional height through a waiver.
(2)
Decorative features. Within the valley growth boundary, one pedestrian entry gateway, trellis, or other decorative structure per street frontage or 100 feet of linear frontage is permitted in the required front or corner side yard of each lot, provided that the maximum height or width of the structure does not exceed ten feet. Such decorative feature shall not have any solid obstruction that exceeds two feet in diameter between the height of three and ten feet. Decorative walls in excess of three feet shall be located outside of the setback area in front of the house and shall meet all other standards of this Section. Gates and decorative features at vehicle entries may exceed ten feet in width, but shall be designed to ensure adequate visual clearance is maintained as determined by the Public Works Director.
(3)
Interior side and rear yards. No fence, hedge, or freestanding wall within or along the exterior boundary of the required side or rear yards shall exceed a height of eight feet unless required for noise attenuation as determined by a noise analysis or in non-residential zones when a demonstrated security need can be demonstrated to the Planning Director through a waiver.
(4)
Main building area. The main building area is the portion of the lot that is outside any required setback. Within the main building area, the maximum height for fences and walls is eight feet except walls that are necessary for noise attenuation may be higher based on the noise analysis.
(c)
Setback from right-of-way. Within the valley growth boundary, fences, walls and hedges shall be set back a minimum of five feet from an adjacent right-of-way line. In areas with detached sidewalks the fence shall not be any closer than back of the sidewalk. The area adjacent to the fence or wall shall be landscaped. Outside the valley growth boundary, fences, walls, and hedges may be located at the property line so long as they are outside of any adjacent right-of-way or access easement and are not in conflict with a sight distance triangle of a road or driveway.
(d)
Fences within the right-of-way. Fences are prohibited within the County right-of-way. The Public Works Department reserves the right to remove any fences placed within the County right-of-way.
Figure 11.19.040: Fences and Walls
(e)
Design and materials. Fencing visible from a street shall be treated as an integral part of the architecture of the site, with materials, colors, and detailing that is compatible with the buildings.
(1)
Limitation on hazardous fencing materials. The use of barbed wire, razor wire, ultra-barrier, electrified, and other hazardous fencing is not permitted, with the following exceptions:
a.
On the site of a permitted agricultural use if needed for livestock or ranch operations.
b.
If such fencing is required by any law or regulation of the County, the State of California, the federal government, or other public agency.
c.
Upon approval of the Zoning Administrator when a business has demonstrated it is necessary for the security of their business operation. Fencing shall be adequately screened from the street and any adjacent residential or mixed-use districts.
(2)
Limitations on concrete block. Within the valley growth boundary plain, concrete block is not permitted as a fencing material if visible from a public street. Plain concrete block may be permitted when finished with stucco and capped with a decorative cap. Split face and other types of architectural block do not need to be finished with stucco.
(3)
Limitations on chain link. Within the valley growth boundary, chain link fencing is prohibited for commercial projects, production homes, and multi-family residential projects (four or more dwelling units). In industrial zone districts, chain link fences must not be visible from public view unless they are screened by existing terrain or vegetation.
(f)
Production homes. Production houses shall be constructed with steel posts.
(g)
Visibility at intersections. Notwithstanding any other provisions of this Section, fences and walls shall comply with the visibility standards of Section 11.19.130, Visibility at Intersections and Driveways.
(h)
Building permits. Fences over seven feet in height shall require a building permit.
(i)
Waivers. The requirements of this Section may be waived or modified through approval of a waiver or variance where the decision making authority finds the proposed fence design is consistent with the character of the neighborhood in which it is located. Waivers allow the maximum height of fences and freestanding walls, up to one foot over allowed height and for placement up to 20 percent of the required yard/setback requirement.
(j)
Non-conforming fences.
(1)
Continuation and maintenance. A non-conforming fence may be continued, and may be maintained, except as provided in Section 11.19.040.D.
(2)
Maintenance or repair of existing nonconforming fence. Maintenance or repair, including structural repairs, may be made to any non-conforming fence or portions thereof if the repairs do not result in a different condition of conformity, or if the repairs bring the fence into compliance with this Section.
(3)
Reconstruction of damaged nonconforming fences. A property owner may reconstruct a non-conforming fence damaged by fire or other calamity if the reconstructed fence is in conformity with this Section.
(4)
Removal of worn nonconforming fence. If because of normal wear and tear a non-conforming fence is no longer fully upright or is no longer serviceable, the property owner either shall remove it or shall replace it with a new fence in conformity with this Chapter.
The height of structures shall not exceed the standards established by the applicable zoning district except as provided below:
(1)
Projections. Chimneys not over six feet in width, cupolas, flagpoles, monuments, steeples, fire and parapet walls, roof equipment, antennas, and similar structures and necessary appurtenances covering not more than 20 percent of the top floor roof area to which they are accessory, may exceed maximum permitted height standards by eight feet. Exceptions may be granted with the approval of a waiver or variance.
Figure 11.19.050: Height Exceptions—Projections
(2)
Support structures for agricultural and industrial uses. Structures such as silos and water tanks associated with a permitted agricultural use in any district and structures such as smokestacks, vents, and mechanical equipment associated with a permitted use located in an Industrial District may exceed maximum permitted height standards provided the height of the structure does not exceed 75 feet. Exceptions may be granted with the approval of a waiver or variance.
(3)
Wind energy systems. Structures associated with wind energy systems are subject to the height limitations of Section 11.32.280, Wind Energy Systems.
(4)
Communications facilities. Structures associated with communication facilities are subject to the height limitations of Section 11.32.300, Wireless Communications Facilities.
(5)
Airport height restrictions. Notwithstanding the provisions of this Section, all structures must comply with any height restrictions of the Airport Overlay District or any standard of the Federal Aviation Administration.
(a)
Applicability. The standards of this Section apply to all new multi-family residential buildings and non-residential development and additions that expand existing floor area by ten percent or more.
(b)
General standards.
(1)
Multi-unit residential buildings. Aisles, passageways, and recesses related to and within the building complex shall be illuminated with an intensity of at least 0.25 foot-candles or equivalent measurement at the ground level during the hours of darkness. Lighting devices shall be protected by weather- and vandal-resistant covers.
(2)
Nonresidential buildings. All exterior doors, during the hours of darkness, shall be illuminated with a minimum of 0.5 foot-candle of light (or equivalent measurement).
(3)
Parking lots. Parking areas shall contain lighting according to the requirements of Section 11.25.100, Design Standards for Parking Lots.
(4)
Maximum height. Lighting fixtures shall not exceed the maximum heights specified in Table 11.19.060, Maximum Height of Lighting Fixtures.
(c)
Control of outdoor artificial light. This Subsection is intended to minimize outdoor artificial light that may have a detrimental effect and reduce the unnecessary illumination of adjacent properties.
(1)
Exemptions. The following types of lighting fixtures are exempt from the requirements of this Section:
a.
Prior installation. All light fixtures installed prior to the effective date of this ordinance, unless 50 percent or more of the light fixtures on the premises are replaced.
b.
Construction and emergency lighting. All construction or emergency lighting fixtures provided they are temporary and are discontinued immediately upon completion of the construction work or abatement of the emergency.
c.
Seasonal lighting. Seasonal lighting displays related to cultural or religious celebrations.
d.
Street lights. Lights installed by a public utility company, County, or developer on behalf of utility or County to provide adequate street illumination.
(2)
Prohibited lighting. The following types of exterior lighting are prohibited:
a.
Drop-down lenses;
b.
Mercury vapor lights; and
c.
Searchlights (excluding emergency/safety response activities), laser lights, or any other lighting that flashes, blinks, alternates, or moves.
(3)
Fixture type. All lighting fixtures shall be shielded so as not to produce obtrusive glare onto the public right-of-way or adjoining properties. All luminaries shall meet the most recently adopted criteria of the Illuminating Engineering Society of North America (IESNA) for "Cut Off" or "Full Cut Off" luminaries. In the Figure below, cd refers to the candela or measurement of luminous intensity based on the direction or angle of the light projection.
Figure 11.19.060(c)(3): Fixture Type
(4)
Light trespass. Lights shall be placed to deflect light away from adjacent properties and public streets, and to prevent adverse interference with the normal operation or enjoyment of surrounding properties.
a.
Direct or sky-reflected glare from floodlights shall not be directed into any other property or street.
b.
No light or combination of lights, or activity shall cast light exceeding one foot candle onto a public street, with the illumination level measured at the centerline of the street.
c.
No light, combination of lights, or activity shall cast light exceeding 0.5 foot candle onto a residentially zoned property, or any property containing residential uses.
Figure 11.19.060(c)(4): Light Trespass
(5)
Required documentation. Photometric data from lighting manufacturers shall be submitted to the Planning Department by the project applicant to demonstrate that the lighting requirements have been satisfied.
(6)
Alternate materials and methods of installation. Design, material, or method of installation not specifically prescribed by this Section may be approved provided the proposed design, material, or method provides approximate equivalence to the specific requirements of this Section or is otherwise satisfactory and complies with the intent of these provisions.
Within the valley growth boundary, open storage of goods, materials, machines, equipment, and vehicles or parts outside of a building for more than 72 hours shall conform to the standards of this Section. The regulations of this Section do not apply to non-commercial vehicles parked in the driveway of a residential use, commercial and business vehicles parked in an approved parking area of an approved non-residential use or temporary storage of construction materials reasonably required for construction work on the premises pursuant to a valid building permit.
(1)
Applicability.
a.
Zoning Districts where Outdoor Storage is Principally Permitted shall apply for a Zoning Clearance and Landscape Review and Inspection with the Planning Department prior to operation.
b.
The outdoor storage of automobiles, boats, and RVs for personal uses shall be considered Personal Storage. Refer to Section 11.32.200, Personal Storage, for standards.
(2)
Location. Outdoor storage shall be located outside of all required front and street side setbacks or any required landscape area.
(3)
Screening. Outdoor storage areas shall be completely screened within a fenced in area so as not to be visible from any public street or freeway; residential district; or publicly accessible open space area, parking area, access driveway, or similar thoroughfare.
(4)
Surfacing.
a.
In non-residential districts, outdoor storage areas shall be surfaced with an all weather surface. Such surfacing shall be permanently maintained free of structural defects and shall conform to all applicable federal and State air and water quality standards. This requirement does not apply to outdoor storage associated with permitted agricultural uses or single family residences.
b.
Outdoor storage of hazardous materials shall require a roof or awning over the materials and either a dead-end sump to contain spills or containment in the form of berms, dikes, or curbs. All hazardous materials regulated by the Land Enforcement Agency (LEA) or Certified Unified Program Agency (CUPA), shall be placed on a surface as deemed appropriate by the permitting agency. In addition, the surface shall conform to all applicable federal and State air and water quality standards.
(5)
Hazardous materials. The operation shall have policies and procedures in place that prohibits the keeping of any material that is considered hazardous under U.S. or California law.
(6)
Storage and accumulation of junk, garbage, and rubbish. It shall be unlawful for any person to store or keep, or permit others to store or keep, junk, garbage, and/or rubbish including, but not limited to, scrap metals or other scrap materials, on any lot or parcel, or any portion thereof, in any zone.
(a)
Applicability. The standards of this Section apply to all new development within the valley growth boundary (excluding single family residential) and additions that expand existing floor area by 25 percent or more.
(b)
Mechanical and electrical equipment. All exterior mechanical and electrical equipment shall be screened or incorporated into the design of buildings to reduce visibility from the street, highway, or adjacent residential districts.
(1)
Ground-mounted HVAC units shall be located away from public activity areas and screened from public view through landscaping and/or screen walls.
(2)
Other ground or wall mounted equipment, public utility infrastructure and other utility components shall be oriented away from public view to the extent possible and screened with evergreen shrubs or placed in an enclosure that is designed to blend with surrounding environment to the extent allowed by the utilities.
(3)
Screening for equipment shall be integrated into the building and roof design and compatible materials, colors and forms shall be used. Wood lattice or fence like coverings are inappropriate for roof mounted screening.
(4)
Roof mounted equipment, including but not limited to air conditioners, fans, vents, and antennas, shall be setback from the roof edge, or placed behind a parapet or in a well so that they are not visible to motorists or pedestrians.
(5)
Outdoor storage areas shall be screened as provided in Section 11.19.070, Outdoor Storage.
(c)
Common property lines (screening between different land uses).
(1)
Required areas. A landscape buffer or screening wall consistent with the provisions of this Section shall be provided for the following uses at the time of new construction or expansion of buildings:
a.
Residential subdivisions: Residential subdivisions of five or more lots adjacent to residential development exceeding ten units/acre, any nonresidential use, or an unloaded urban collector or major arterial roadway.
b.
Multi-unit residential uses: Multi-unit residential uses exceeding ten units/acre adjacent to a single unit dwelling or duplex, any industrial use, or an unloaded urban collector or major arterial roadway.
c.
Nonresidential uses: Nonresidential uses adjacent to any residential district, public park, or open space.
(2)
Location. Landscape buffers and screening walls shall follow the lot line of the lot to be screened, or shall be so arranged within the boundaries of the lot so as to substantially hide from adjoining properties the building, facility, or activity required to be screened.
a.
Screening walls required. Screening walls are required between residential and industrial districts or residential districts adjacent to unloaded urban roadways. When located along roadways, short street blocks and/or pedestrian paseos shall be incorporated into project design. Where screening walls are required, they are in addition to any required landscaping as identified in Chapter 11.24, Landscape.
b.
In other locations, walls that prevent convenient access between residential districts and parks, trails, public transit or commercial and public services are prohibited.
(3)
Height. Landscape buffers should reach a minimum of five feet in height at maturity. Screening walls shall be a minimum of six feet and maximum of eight feet in height, unless otherwise specified through a discretionary planning entitlement.
a.
Landscape buffers shall be comprised of a view-obscuring arrangement of evergreen and deciduous trees, shrubs and similar vegetation not less than five feet in height at maturity. Evergreens shall comprise at least 75 percent of the trees and plants utilized. Vegetation shall be planted at intervals that emphasize massing and form rather than individual or small groupings of shrubs and trees.
b.
Screening walls shall be constructed of stucco, decorative block, concrete panel, or other substantially equivalent material. Chain-link fencing does not fulfill the screening wall requirement.
(4)
Berms. An earth berm may be used in combination with the above types of landscape buffers and screening walls, but not more than two-thirds of the required height of such screening may be provided by the berm.
(5)
Maintenance. Landscape buffers and screening walls shall be maintained by property owner in good repair, including but not limited to replacement of dead or diseased vegetation, painting, graffiti removal, and shall be kept free of litter or advertising.
(6)
Waivers and modifications. The Zoning Administrator may grant a waiver or modification of the screening requirements pursuant to Chapter 11.60, Waivers and Modifications.
(a)
Buffers and setbacks between agricultural and non-agricultural uses and districts. The purpose of agricultural buffers and setbacks is to provide for the long-term viability of agricultural operations and to minimize potential conflicts between agricultural uses and non-agricultural development and uses.
(1)
Permanent agricultural buffers. Permanent agricultural buffers are only required at the edges of rural community boundary areas and the valley growth boundary. The minimum buffer width is based on the type of agricultural use as identified in Table 11.19.090-A.
a.
Agricultural buffers should be designed to accommodate drainage, trails, roads, other facilities or infrastructure, community gardens, native landscaping, and other uses that would be compatible with ongoing agricultural operations and provide valuable services or amenities. Windrows, berms, or other types of barriers shall be incorporated into the buffer design to reduce impacts from adjacent agricultural operations.
b.
Where buffers are required the buffer shall be located on the non-agricultural property in instances where the development is occurring adjacent to the rural community boundary or valley growth boundary.
(2)
Reductions in buffer width. Agricultural buffers may be reduced with minor use permit approval where the decision-making authority determines, in consultation with the Agricultural Commissioner that:
a.
Specific site characteristics exist such as topography, prevailing winds, vegetation, and other site features provide adequate buffering such that the required setback is not necessary to promote and protect agriculture and protect public health and safety; or
b.
Site constraints such as size and configuration are such that the required setback is infeasible and the reduced setback provides the maximum feasible buffer from the agricultural district or use.
(3)
Exclusions. Permanent buffers are not required in areas adjacent to planned urban development within the valley growth boundary or when adjacent to existing rural residential or agricultural rural residential uses where the parcel sizes are primarily five acres or less in size.
(4)
Setbacks for urban commercial agriculture. Where new commercial agricultural operations are proposed within the valley growth boundary, setbacks and/or operational restrictions shall be required to reduce impacts of the agricultural operation on non-agricultural uses and districts. The width of the setback and/or operational restrictions shall be as determined through the conditional use permit and shall be based on the type of agricultural operation, site specific characteristics, adjacent uses and districts, and recommendations from the Agricultural Commissioner. Where setbacks are required they shall be provided within the project boundary of the commercial agricultural operation.
(5)
Buffer management plan. Where agricultural buffers or setbacks are required they shall be maintained in accordance with a buffer management plan acceptable to and approved by the County. Agricultural buffer management plans shall include provisions for long-term maintenance of improvements and facilities that will not result in a fiscal impact on the County. Such plans shall, at a minimum, address the following:
a.
A description of site conditions such as vegetation and habitat type, natural and man-made features, and other characteristics of the site;
b.
Grass and brush clearing for fire fuel management, as required by site conditions;
c.
Erosion control;
d.
Fencing if required for the protection of resources;
e.
Any proposed recreational activities or facilities; and
f.
Any natural resource management activities and uses.
(b)
Setbacks adjacent to the landside of levees. Setbacks from levees shall be as determined by the levee maintenance district, but in no case shall be less than 50 feet from the toe of levees for new structures, fences, or pools to preserve the long-term ability to conduct inspections, perform maintenance, fight floods, and allow room for future minor changes to levee configurations. Additional requirements pertaining to grading activities adjacent to levees is provided in Chapter 11.23, Grading, Drainage, and Erosion Control.
(c)
Allowed building projections. Building projections may extend into required setback areas, according to the standards of Table 11.19.090(b), Allowed Building Projections into Setbacks.
(1)
Limitations. The "Additional Standards and Limitations" column of Table 11.19.090(b) states any dimensional, area, or other limitations that apply to allowed projections into setbacks. In addition, the following limitations apply to all projections into setbacks:
a.
No projection may extend into a public utility easement.
b.
No projection may extend closer than three feet to an interior lot line.
c.
No projection may extend closer than six feet to a building or structure on an adjacent lot.
d.
Projections are subject to all applicable requirements of the California Building Code.
e.
Any applicable lot coverage limitations of the district must be met.
Figure 11.19.090(b): Allowed Building Projections into Setbacks
Swimming pools and spas shall comply with Chapter 10.40, Swimming Pool Safety Act, of the County Code, as well as the following standards:
(1)
Within the valley growth boundary, swimming pools, spas or associated filtration equipment and pumps shall not be located in the front yard area or within the street side yard setbacks.
(2)
The outside wall of the water-containing portion of any swimming pool or spa shall be located at least five feet from all interior side and rear lot lines for above ground pools or spas and three feet for in ground pools or spas.
(a)
Applicability. Solid waste and recycling-container enclosures are required for new multi-family dwellings consisting of four or more dwelling units and for all office, and retail developments. Compliance with the standards of this Section is required in conjunction with all new development and with additions that expand existing floor area by ten percent or more.
(b)
Alternatives. Projects with ten or fewer residential units may have individual trash containers for each unit, provided that there is a designated screened location for each individual trash container adjacent to the dwelling unit and provided that solid waste and recycling containers for each unit are brought to the curbside for regular weekly or bi-weekly collection.
(c)
Location. All enclosures shall comply with the California Fire Code and shall meet the following requirements unless it is demonstrated that they are infeasible as determined by the Zoning Administrator.
(1)
The solid waste and recycling storage area shall not be located within any required front yard, street side yard, any required parking and landscaped areas, or any other area required by this Code to be constructed or maintained unencumbered according to fire and other applicable building and public safety codes.
(2)
Solid waste and recycling areas shall be consolidated to minimize the number of collection sites and located so as to reasonably equalize the distance from the building spaces they serve. There should be a minimum of one solid waste and recycling enclosure per 50 units.
(3)
Solid waste and recycling storage areas shall be accessible to haulers. Storage areas shall be located so that the trucks and equipment used by the County or its contracted solid waste and recycling collector(s) have sufficient maneuvering areas and, if feasible, so that the collection equipment can avoid backing-up. Project applicants are responsible for procuring current equipment size and turning radius from the County or its contracted solid waste and recycling collector(s).
(d)
Materials, construction, and design.
(1)
Minimum height of screening. Solid waste and recycling storage areas located outside or on the exterior of any building shall be screened with a solid enclosure at least five feet in height, except for a gated opening.
(2)
Enclosure material. Enclosure material shall be compatible to the main structure(s).
(3)
Access to enclosure from residential projects. Each solid waste and recycling enclosure serving a residential project shall be designed to allow walk-in access without having to open the main enclosure gate.
(4)
Enclosure pad. Pads shall be a minimum of reinforced four-inch-thick concrete.
(5)
Drainage. Drainage from neighboring roofs and pavement shall be diverted away from the trash collection area. No storm drains shall be in the immediate vicinity of trash storage areas.
(6)
Landscaping. The perimeter of the recycling and trash enclosure shall be planted, if feasible, with drought resistant landscaping, including a combination of shrubs and/or climbing evergreen vines, except for a gated opening.
(7)
Clear zone. The area in front of and surrounding all enclosure types shall be kept clear of obstructions, and shall be painted, striped, and marked "No Parking."
All electrical, telephone, cable television, and similar distribution lines providing direct service to a development site shall be installed underground within the site. This requirement applies to development within the valley growth boundary and may be waived by the Community Development and Services Agency Director upon determining that underground installation is infeasible.
(a)
Street intersections. Vegetation and structures may not exceed a height of three feet within the sight distance triangular area formed by the intersecting curb lines (or edge of pavement when no curbs exist) and a line joining points on these curb lines at a distance of 25 feet along both lines from their intersection, unless an exception is obtained from the Public Works Director. Existing trees, or any portions thereof, that are located within this sight distance triangle shall have a clearance of seven feet high minimum between the lowest portion of the canopy and the sidewalk. New trees shall not be planted within the sight distance triangle.
Figure 11.19.130: Visibility at Intersections
(b)
Exempt structures and plantings. The regulations of this Section do not apply to public utility poles official warning signs or signals; or plant species of open growth habits and not planted in the form of a hedge that are so planted and trimmed as to leave at all seasons a clear and unobstructed cross view; traffic control devices or places where the contour of the ground is such that there can be no cross visibility at the intersection.
(Ord. No. 1556; Ord. No. 1613; Ord. No. 1624)
Before obtaining any building permits in the County, property owners must demonstrate legal access to the subject parcel.
The Board of Supervisors finds that it is in the public's interest to preserve and protect agricultural and mining land and operations within the County and to specifically protect these lands for exclusive agricultural and mining use.
(1)
Where non-agricultural or non-mining land uses, particularly residential and commercial development, extend onto agricultural and mining lands or exist side by side with these operations, they are frequently the subject of nuisance complaints. As a result, some agricultural and mining operations are forced to cease or curtail their operations and many others are discouraged from making investments in improvements to their operations, to the detriment of the economic viability of the County's agricultural and mining industries as a whole. Therefore, it is the purpose and intent of this Chapter to reduce the loss to the County of its agricultural and mining resources by limiting the circumstances under which properly conducted agricultural and mining operations may be considered a nuisance;
(2)
It is the further purpose and intent of this Chapter to promote a good-neighbor policy by requiring notification of owners, purchasers, residents, and users of property adjacent to or near agricultural and mining operations of the inherent potential problems associated with being located near such operations, including, without limitation, noise, vibrations, odors, fumes, dust, smoke, insects, operation of machinery during any time of day or night, storage and disposal of manure, and ground or aerial application of fertilizers, soil amendments, seeds and pesticides. It is intended that, through mandatory disclosures, owners, purchasers, residents and users will better understand the impact of living or working near agricultural operations and be prepared to accept attendant conditions from properly conducted agricultural and mining operations as a normal and necessary aspect of living in a county with a strong rural character and an active agricultural and mining sector;
(3)
It is also the intent of the County to balance the rights of mining operators and farmers with the rights of non-farmers who own, occupy, or use land within the valley growth boundary of the County.
(a)
No agricultural or mining operation conducted or maintained on those lands zoned or designated for such use (agricultural districts, extractive district, and timber production district), or currently so used for agricultural or mining in a manner consistent with proper and accepted customs and standards, as established and followed by similar operations in the County, shall be or become a nuisance for purposes of this Code or County regulations if it was not a nuisance when it began. The provisions of this Section shall not apply where a nuisance results from the negligent or improper management or operation of an agricultural or mining operation.
(b)
This Section shall not invalidate any provision contained in the Health and Safety Code, Fish and Game Code, Food and Agricultural Code, or Division 7 (commencing with Section 13000) of the Water Code of the State of California, if the agricultural or mining activity, operation, or facility, or appurtenances thereof, constitutes a nuisance, public or private, as specifically defined or described in any such provision.
(c)
This Section shall not apply to lands within the valley growth boundary that are converted from agricultural zoning designations to urban zoning designations or new commercial agriculture operations located within urban areas.
(d)
This Section is not to be construed so as to modify or abridge the state law set out in the California Civil Code relative to nuisances, but rather it is only to be utilized in the interpretation and enforcement of the provisions of the County ordinances and regulations.
This Chapter shall apply to quit claim deeds, grant deeds, land sale contracts, and leases executed after the effective date of this Chapter affecting property within the unincorporated area of the County specified herein.
(a)
Consumer disclosure by seller. A person who is acting as an agent for the seller or lessor of real property located in the County or the seller or lessor of real property if he or she is acting without an agent shall disclose to the prospective purchaser that:
"The property described herein is located in the County of Yuba, which is an agricultural and mining area, and residents of the property may be subject to inconvenience or discomfort arising from use of agricultural chemicals, and from pursuit of agricultural operations, including, but not limited to, cultivation, irrigation, plowing, spraying, aerial application, pruning, harvesting, crop protection, agricultural burning, which occasionally generates dust, smoke, noise and odor, and protecting animal husbandry from depredation. Residents may also be subject to inconvenience or discomfort arising from the pursuit of mining operations, which occasionally generate dust, smoke, noise, odor and vibrations. Yuba County has established zoning for agricultural land that sets as a priority the agricultural use of the lands included therein, and has established as a priority the mining use of lands so designated, and residents of such property in or near these areas should be prepared to accept such inconvenience or discomfort as normal and necessary to such operations."
(b)
Disclosure in documents. The disclosure statement set forth in Subsection (a), consumer disclosure by seller, above shall be included in a document that a purchaser, lessee or transferee signs at the time of the sale, purchase, contract of sale, transfer or lease of real property within the County in conjunction with the disclosures required by California Civil Code Div. 2, Pt. 4, Title 4, ch. 2, Art. 1.5 (Civil Code § 1102 et seq.).
(c)
Disclosure in building permits. Where a building designed for residential occupancy is to be constructed in the County, the owners of the property shall, prior to issuance of a building permit, be required to sign a statement of acknowledgement on forms approved by the Community Development and Services Agency's Building Department containing the following statement:
"The property described herein on which the proposed structure is to be built is located within the County of Yuba, which is an agricultural and mining area, and residents of this property may be subject to inconvenience or discomfort arising from the use of agricultural chemicals, and from the pursuit of agricultural operations including, but not limited to cultivation, irrigation, plowing, spraying, aerial applications, pruning, harvesting, agricultural burning, which occasionally generate dust, smoke, noise and odor, and protecting animal husbandry from depredation. Residents may also be subject to inconvenience or discomfort arising from the pursuit of mining operations, which occasionally generate dust, smoke, noise, odor and vibrations. Yuba County has established zoning for agricultural land which sets as a priority the agricultural use of the lands included therein and has established as a priority the mining use of lands so designated, and residents of such property in or near these areas should be prepared to accept such inconvenience or discomfort as normal and necessary to such operations."
In lieu of signing the statement required above, the owner may submit evidence that the statement set forth in Subsection (a), consumer disclosure to seller, above has been made part of a document accompanying the sale, purchase, transfer, or lease of the property on which it is to be constructed.
(d)
Nondisclosure. Non-compliance with any part of this Chapter shall not affect title to real property, nor shall it prevent the recording of any document. However failure to make the disclosures required by Subsections (a), consumer disclosure to seller, and (c), disclosure in building permits, above shall subject the agent for the seller or lessor or the seller or lessor if there is no agent to a civil action by the purchaser or lessee for any damages incurred thereby.
The County may install or permit the installation of signs at the entry or within established farming or mining areas to notify and explain to purchaser that some of the land in such area is being used for agricultural or mining purposes and that the purchasers' interests are protected by law. The prospective purchaser of such land or a residence is advised to check with local County agencies as to any regulations or requirements that may affect agricultural or mining property and of inherent problems associated with a purchase of such property and of the likely effects of such agricultural or mining operations.
The purpose of this Chapter is to allow residential density flexibility through reduced lot area cluster and development in the rural foothill and mountainous areas of the County in order to facilitate the retention of natural resources, open space, agricultural lands, and wildlife habitat; avoid hazardous areas; and further implement the goals and policies of the General Plan.
The use of these clustered development provisions is allowed in the RC, RR, and RE districts located within a rural community boundary.
(a)
Pre-application review. Pre-application review pursuant to Section 11.53.160 is required prior to submitting a formal application for a clustered development project.
(b)
Conditional use permit required. Conditional Use Permit approval in compliance with Chapter 11.57, Use Permits., is required concurrent with approval of a tentative map.
Clustered development projects shall adhere to the development standards for the base zoning district, except as modified below:
(1)
Density. The total number of dwelling units (single, second, and/or multi) in a clustered development shall not exceed the maximum number permitted by the base zone density for the total area of the project.
a.
Deed Restriction Required. Deed restrictions shall be filed on each property to ensure the overall maximum density is not exceeded through future subdivision or development.
(2)
Lot size. The minimum lot size in a clustered development project shall be one acre. However, access, sewage disposal, water supply, surrounding parcel sizes, topography, adjacent land uses, applicable General Plan policies, and other factors will affect the County's decision on a project-by-project basis.
(3)
Sewage disposal/potable water. Each application for a clustered development project shall obtain tentative clearance from the Environmental Health Director for the proposed parcel sizes.
a.
Parcels one acre or smaller in size shall provide both a public sewer service and public water supply. Parcels between one acre and two and one-half acres in size shall provide either a public sewer service or public water supply as determined by the Environmental Health Director.
(4)
Open space. A minimum of 60 percent of the total project site shall be dedicated as permanent open space of which no more than ten percent may be used for infrastructure necessary to serve the development (wells, sewage disposal, drainage, detention basins and similar facilities).
a.
Guarantee. Open space shall be guaranteed in perpetuity using one or more of the following control mechanisms:
1.
Dedication of a conservation (or open space) easement to the County, other public agency or a public interest land trust;
2.
Dedication of land in fee-title to the County or other public agency; or
3.
Deed restrictions recorded with the County Recorder.
b.
Management plan. Public and private open space shall be maintained in accordance with an open space management plan acceptable to and approved by the County. Such plans shall, at a minimum, address the following:
1.
A description of site conditions such as vegetation and habitat type, natural and man-made features, and other characteristics of the site;
2.
Grass and brush clearing for fire fuel management, as required by site conditions;
3.
Erosion control;
4.
Sewage disposal, water well, and stormwater drainage facilities, including ditches and detention basins, if proposed for the development;
5.
Fencing if required for the protection of resources;
6.
Recreational activities compatible with open space; and
7.
Other natural resource management activities and uses. Open space management plans shall include provisions for long-term maintenance of improvements and facilities that will not result in a fiscal impact on the County.
c.
Uses. Uses and activities within dedicated open space shall be compatible with open space land. Unless limited or restricted by a conservation easement, development agreement, conditions on the approved tentative map, or other restricting mechanism, the following uses shall be permitted:
1.
Agriculture, including grazing and timber management, when allowed by the underlying base zoning;
2.
Resource conservation;
3.
Wildlife management;
4.
Recreational activities compatible with the objectives of the open space management plan;
5.
Community wells, community septic systems, community sewage disposal systems, and individual wells may be allowed as private open space and shall not exceed ten percent of the minimum 60 percent open space requirement identified in Section 11.21.040(4);
6.
Pedestrian, bicycle and equestrian trails. Public access is not required, but may be permitted subject to a public access easement being recorded; and
7.
Other similar uses, as determined through the application review process.
(5)
Flood zones. Clustered development projects shall be prohibited within flood zones unless they meet the requirements of Chapter 11.14, Floodplain Overlay District.
The purpose of this Chapter is to establish minimum wildfire protection standards pursuant to Public Resources Code § 4290 that shall apply to the issuance of a building or construction permit, tentative map approval, or other development entitlement approved by the County in designated State Responsibility Areas (SRA).
The provisions of this Chapter shall apply to the approval of new parcels, building permits for new construction or significant improvement to existing structures (within a three year period: 50 percent expansion of floor area or improvements valued at $25,000.00), road construction and road extension projects contained in Yuba County and located in a Cal Fire State Responsibility Area (SRA). All specified or referenced distances shall be measured along the ground unless otherwise stated. Basic emergency access and perimeter wildlife protection measures specified in the sections to follow provide standards for emergency access, signing and building numbering, private water supply reserves for emergency fire use, and vegetation and modification.
Except as otherwise noted in Section 9.70.220, Address Number; Display, of the County Code, the provisions of this Chapter with exception of significant improvements described above, shall not apply to existing permitted structures, existing County maintained roads, existing private roads and driveways, lot line adjustments, roads constructed exclusively for agricultural or extractive industrial uses where the property is owned by a single person or entity, and roads constructed exclusively for the management or harvesting of timber products.
To facilitate locating a fire and to avoid delays in response, all newly constructed or approved roads, streets, and buildings shall be designated with names or numbers posted on signs clearly visible and legible from the roadway. This Section shall not restrict the size of letters or numbers appearing on street signs for other purposes.
(1)
Size of letters, numbers, and symbols for street and address signs shall be a minimum four-inch letter height, ½-inch stroke, reflective, contrasting with the background color of the sign.
(2)
Street and road signs shall be visible and legible from both directions of vehicle travel for a distance of at least 100 feet.
(3)
All buildings shall have a permanently posted address, which shall be placed at each driveway entrance and visible from both directions of travel along the road. In all cases, the address shall be posted at the beginning of construction and shall be maintained thereafter, and the address shall be visible and legible from the road on which the address is located.
(4)
Address signs along one-way roads shall be visible from both the intended direction of travel and the opposite direction.
(5)
Where multiple addresses are required at a single driveway, they shall be mounted on a single post.
All roads and private driveways, unless exempt under Section 11.22.020, Applicability, of this Chapter, shall be constructed to provide for safe access for emergency wildland fire equipment and civilian evacuation concurrently.
(1)
All newly constructed approved roads, driveways and buildings shall be addressed by name(s) and number(s) displayed with signs that are clearly visible and legible from the roadway in accordance with Chapter 9.70, Uniform System for the Naming of Streets and Numbering of Properties, of the County Code and with the State of California Traffic Manual. All signs shall be installed prior to map recordation where a tentative map application has been approved and prior to the issuance of the Final Certification of Occupancy where an application for building permits has been proposed.
(2)
All new roads shall be constructed in accordance with Section 11.46.030, Road Improvements. All roads and driveways shall be designed to provide the minimum vertical clearance and to carry the maximum legal gross vehicle limit allowed by the Vehicle Code.
(3)
All driveways shall provide a minimum 12-foot-wide traffic lane and unobstructed vertical and horizontal clearance to combustible vegetation of 15 feet along its entire length.
a.
Driveways exceeding 150 feet in length, but less than 800 feet in length, shall provide a turnout near the midpoint of the driveway. Where the driveway exceeds 800 feet, turnouts shall be provided no more than 400 feet apart.
b.
A turnaround shall be provided at all building sites on driveways over 300 feet in length, and shall be within 50 feet of the building.
c.
Max driveway slope not to exceed 16 percent for gravel base driveways and 20 percent for paved driveways. Driveways exceeding 20 percent slope require fire district approval.
(4)
When a gate is proposed on a private road or driveway to restrict access to property, said gate shall be constructed as follows:
a.
Gate entrances shall be at least two feet wider than the width of the traffic lane(s) serving the gate, minimum 14 feet wide.
b.
All gates providing access from a road to a driveway shall be located at least 30 feet from the roadway and shall open to allow a vehicle to stop without obstructing traffic on the road.
c.
A key box is required where access to or within a structure or an area is restricted because of secured openings such as a locked gated entrance.
(5)
All new roadway structures shall meet the following standards:
a.
Bridges shall be constructed to carry at least the maximum load and provide the minimum vertical clearance as required by Vehicle Code §§ 35550, 35750 and 35250.
b.
Appropriate signing, including, but not limited to weight or vertical clearance limitations, and one-way road or single-lane conditions shall be posted to reflect the capacity of each bridge.
c.
A bridge with only one traffic lane may be authorized by the County; however, such bridge shall provide for unobstructed visibility from one end of the bridge to the other and turnouts at both ends of such bridge.
An emergency water system for wildfire protection shall be constructed in State Responsibility Areas and written clearance from Calfire on acceptance of the system design shall be submitted to CDSA prior to the recordation of a parcel map or final map. Prior to recordation, then applicant shall also demonstrate to the satisfaction of the Public Works Department how the water system will be maintained in perpetuity.
Fire hydrants shall be installed to meet the following standards:
(1)
Eighteen inches above grade.
(2)
Minimum eight feet from flammable vegetation.
(3)
Minimum four feet and a maximum 12 feet from roadway.
(4)
Minimum 50 feet and a maximum one-half mile from the building it serves.
(5)
Two and one half inch N.H. male fitting for pressure and gravity systems and four and one-half inch for draft systems
(6)
Identified with a three-inch reflectorized blue dot on the driveway, address sign, or placed within three feet of a hydrant with a sign three to five feet above the ground.
(7)
Located at a turnout or turnaround, along the driveway to the building it serves or along the road that intersects with that driveway.
The following defensible space standards shall be completed in SRA's prior to parcel or final map recordation, or the issuance of a Certificate of Building Occupancy.
(1)
Setback for defensible space. Firebreaks shall be established and maintained in accordance with Chapters 10.15, Firebreaks, of the County Code and Section 11.54.100, Mitigation Monitoring and Reporting Program and the following:
a.
All new buildings shall be constructed with a minimum 30-foot setback from all property lines and/or the road right-of-way to serve as a fire break. Required utility structures such as but not limited to water tanks, propane tanks, and well/pump houses are not considered buildings for the purposes of this Section.
b.
The side and rear yard building setback requirement may be reduced to the setback permitted by the zoning district upon written clearance from the fire district.
(2)
Disposal of flammable vegetation and fuels. Disposal, including chipping, burying, burning or removal to a landfill site approved by the local jurisdiction, of flammable vegetation and fuels caused by site development and construction, road and driveway construction, and fuel modification shall be completed prior to completion of road construction or final inspection of a building permit.
(3)
Greenbelts. When proposed as part of a development plan, greenbelts shall be located strategically as a separation between wildland fuels and structures.
Upon request by the applicant, a waiver of one or more of the requirements of this Chapter may be allowed by the Development Review Committee, where such waiver provides the same overall practical effect provided by this Chapter. A letter requesting such waiver shall be submitted to the Development Review Committee along with any fee established for waivers. A copy of the waiver request shall be submitted to the CDSA Director and to Cal Fire for review and comment. Cal Fire shall sign off prior to Development Review Committee approval. The review and comment period shall be no less than 14 days. Approval or conditional approval of the waiver request shall only be granted when the Development Review Committee makes the finding that such action is in keeping with the purposes and intent of this Chapter. Such findings shall include a statement of reasons for the decision. A written copy of these findings shall be provided to the Cal Fire Ranger Unit headquarters that administers SRA fire protection in Yuba County.
The decision of the Development Review Committee shall be final unless an appeal is filed in accordance with Section 11.53.150, Appeals and Calls for Review.
The purposes of this Chapter are to:
(1)
Regulate grading, drainage, and other earthwork activities within the unincorporated areas of Yuba County to preserve and safeguard public welfare, life, health, and property;
(2)
Ensure that the intended use of a graded site is consistent with the Yuba County General Plan (including adopted Community or Specific Plans), the County's Storm Water Management Plan, Yuba County Public Works Standard Specifications, California Fire Safe Standards, stormwater regulations for construction activities, and local ordinances, including this Code, building and construction (Title 10), and applicable building codes;
(3)
Require implementation of erosion and sedimentation control measures to protect water quality and reduce the discharge of pollutants into county storm water drainage systems to the maximum extent practicable using best management practices; and
(4)
Establish authority and procedures for the issuance of grading permits; for the approval of grading plans; for inspection of earthwork activities; and, for enforcement of the provision herein.
(a)
Grading permit; required.
(1)
Any grading performed in the County of Yuba—Phase II Municipal Separate Sewer System (MS4) permit boundaries that creates or replaces 2,500 square feet or more of impervious surface shall require either a grading permit or a building permit. For these activities, the requirements within Code Section 7.50 shall apply.
(2)
For all projects excluding those covered in Subsection 11.23.020(a)(1) above, and except for the specific exemptions listed in Subsection 11.23.020(b), Grading Permit; Exemptions, no person shall do or permit to be done any grading on any site in the unincorporated areas of Yuba County without a valid grading permit obtained from the Community Development and Services Agency. A permit shall also be required for the following:
a.
Retaining walls which are over four feet in height, as measured from bottom of footing to top of the wall;
b.
Any retaining walls that are subject to surcharge;
c.
Private vehicular bridges;
d.
Fill operations exceeding four feet when filling an abandoned swimming pool unless a demolition permit for same is obtained from the Building Department.
(3)
A grading permit is required for any grading and/or other construction activity with ground disturbance of more than one acre, or any grading and/or construction activity smaller than one acre but part of a greater plan involving over one acre.
(b)
Grading permit; exemptions. Unless in conflict with provisions of adopted general and/or specific plans, and excluding projects covered in Subsection 11.23.020(a)(1), the following grading may be done without obtaining a permit. Exemption from the requirement of a permit shall not be deemed permission to violate any provision of this Chapter or the need to obtain any other permits or other authorizations that may be otherwise required with that activity:
(1)
Minor projects which have cuts or fills, each of which is less than two feet in vertical depth at its deepest point measured from the existing ground surface and meets all of the following criteria:
a.
Less than 50 cubic yards of graded material in a single area and does not obstruct a drainage course, within a two-year period. In calculating the graded material quantity, excavation material used as fill material will not be counted twice. (For example: 25 cubic yards [C.Y.] of excavation material that is also placed as fill material would be calculated as 25 cubic yards, not as 25 C.Y. + 25 C.Y. = 50 C.Y.);
b.
The removal, plowing under or burial of less than 10,000 square feet of vegetation on slopes ten percent or greater or any amount of vegetation on slopes less than ten percent on areas of land totaling less than one acre within a two-year period;
c.
Does not create unstable or erodible slopes;
d.
Does not encroach onto sewage disposal systems including leach field areas, or into setbacks of existing sewage disposal systems, repair areas, or proposed septic areas as outlined in Section 7.07.450, Location of Septic Tanks, Building Sewer Pipes, Leach Fields and Seepage Pits, of the County Code;
e.
Does not impact the seal integrity of any water well. If a well is encountered during the grading and is not intended for use, it shall be destroyed with permit according to Section 7.03.090, Abandonment [of water wells], of the County Code;
f.
Does not encroach into the areas designated as zone A as shown on the Flood Insurance Rate Maps;
g.
Does not encroach into the areas designated as Inundation Easements;
h.
Does not obstruct any watercourse or disturb or negatively impact any drainage way, wetland, stream environment zone, or water body;
i.
Does not divert or obstruct overland flow, or negatively affect other adjacent properties;
j.
Includes provisions to effectively prevent discharges of pollutants from the site; and
k.
Provides for completion of soil disturbing activities within a continuous period of 45 days, and revegetation of all disturbed areas immediately thereafter.
(2)
Grading done by or under the supervision or construction control of a State or Federal agency that assumes full responsibility for the work;
(3)
Excavations or fill operations in connection with a swimming pool authorized by a valid building permit or demolition permit issued by the Building Department;
(4)
Retaining walls less than four feet in height, as measured from bottom of footing to the top of the wall, and not subject to surcharge;
(5)
Grading necessary for agricultural operations, unless such grading converts one acre or more of land that contains riparian vegetation, oak woodlands or forests; involves grading and earthmoving activities on slopes over 12 percent; and/or, will create a cut or fill whose failure could endanger any structure intended for human or animal occupancy or any public road, or could obstruct any watercourse or drainage conduit, or provided no excavated material is imported to or exported from the premises;
(6)
Trenching and grading incidental to the construction or installation of County approved underground pipe lines, septic tank disposal fields, conduits, electrical or communication facilities, and drilling or excavation for post holes or approved wells;
(7)
Excavations less than 250 cubic yards for soil or geological investigations by a geotechnical engineer, civil engineer, or engineering geologist;
(8)
Grading in accordance with plans incorporated in an approved surface mining permit, reclamation plan, or sanitary landfill or environmental remediation project or petroleum product tank removal and installation where governed by other State or County ordinance, and provided no excavated material is imported to or exported from the premises;
(9)
Maintenance of existing firebreaks and roads to keep the firebreak or road substantially in its original condition;
(10)
Routine cemetery excavations and fills;
(11)
Performance of emergency work necessary to protect life or property when an urgent necessity arises. The person performing such emergency work shall notify the Community Development and Services Agency promptly of the problem and work required and shall apply for a permit within ten calendar days after commencing such work;
(12)
An excavation below finished grade for basements and footings of a building, retaining wall or other structure authorized by a valid building permit. This shall not exempt any fill made with the material from such excavation or exempt any excavation having an unsupported height greater than five feet after the completion of such structure;
(13)
Timber harvest operation conducted under valid State or Federal permit, stream alteration permits, dams under State jurisdiction, etc.
(a)
Grading standards.
(1)
No person shall do or permit to be done any grading in such a manner that quantities of dirt, soil, rock, debris or other material substantially in excess of natural levels are washed, eroded or otherwise moved from the site, except as specifically provided for by a permit. In no event shall grading activities cause or contribute to the violation of provisions of any applicable NPDES stormwater discharge permit.
(2)
All grading within unincorporated Yuba County, regardless of whether or not a grading permit is required, shall be in compliance with all of the following:
a.
Applicable requirements of this Chapter and other County ordinances, rules, regulations, and design standards.
b.
Minimum acceptable industry standards for minimizing erosion and controlling sediment discharges by providing erosion and sediment controls, soil stabilization, source controls, and pollution prevention measures.
c.
Requirements of the Central Valley Regional Water Quality Control Board including the Statewide "General Permit for Discharges of Storm Water Associated with Construction Activities and the Phase II Small MS4 General Permit (Order No. 2013-0001-DWQ)."
d.
As determined by the Public Works Director, additional requirements beyond those specified or referenced in this Chapter if such requirements are deemed necessary to protect the health, safety, or welfare of the public; to prevent or eliminate a hazard to public or private property; or, to otherwise fulfill the purposes of this Chapter.
(b)
Water obstruction. No person shall do or permit to be done any grading which may obstruct, impede or interfere with the natural flow of storm waters, in such manner as to cause flooding where it would not otherwise occur, aggravate any existing flooding condition or cause accelerated erosion. This Section applies whether such waters are unconfined upon the surface of the land or confined within land depressions or natural drainage ways, are unimproved channels or watercourses or improved ditches, channels or conduits.
(c)
Levee work. No person shall excavate or remove any material from or otherwise alter any levee required for river, creek, bay, or local drainage control channel, including excavation along the projected fill slope line, without prior approval of the local governmental agency responsible for the maintenance of the levee.
(d)
Levee landside setbacks; development or grading adjacent to levees.
(1)
Setbacks from levees shall be as determined by the levee maintenance district, but in no case shall be less than 50-feet from the toe of levees for new structures, fences, pools, roads, utilities, and storage or stockpiling of agricultural waste to preserve the long-term ability to conduct inspections, perform maintenance, fight floods, and allow room for future minor changes to levee configurations. In addition, any grading activity within 400 feet of the landside levee toe shall require a registered geotechnical engineer to submit a stamped report demonstrating that the proposed action will not have an adverse impact on the integrity of the levee system. For the purposes of this Section, grading activities are defined as any trench or hole greater than 24 inches in depth or general site grading that reduces the surface by more than 12 inches in depth.
(2)
Site-specific exceptions to the setback standard can be pursued by an application to the Board of Supervisors on a case-by-case basis. These exceptions should only be allowed in instances where levee stability upgrades greatly exceed minimum standards, such that risk and uncertainty are substantially removed at that location.
(3)
Agricultural practices will generally be exempt from setback requirements except aquaculture projects, ponds, or similar that may affect integrity of levees or the storage of agricultural waste as specified previously in this Section. This exemption shall continue until agricultural activity ceases and development activity begins within the area protected by the levee.
(e)
Construction in public rights-of-way. No person shall perform any grading work within the right-of-way of a public road or street, or within a public easement, without prior written approval of the Public Works Director or authorized Agent.
(f)
Hazards. If the Enforcement Official determines that any grading on private or public property constitutes a hazard to public safety; endangers property; adversely affects the safety, use or stability of adjacent property, an overhead or underground utility, or a public way, watercourse or drainage channel; or could adversely affect the water quality of any water bodies or watercourses, the Public Works Director or authorized Agent may issue a stop work notice to the owner of the property upon which the condition is located, or other person or agent in control of such property. Upon receipt of such stop work notice, the recipient shall, within the period specified therein, stop all work, obtain a grading permit and conform to the conditions of such permit. The Community Development and Services Agency may require the submission of plans or soil or geological reports, detailed construction recommendations, drainage study or other engineering data prior to and in connection with any corrective or proposed work or activity.
(g)
Liability. Neither issuance of a permit under the provisions of this Chapter nor compliance with the provisions hereof or with any conditions imposed in a permit issued hereunder shall relieve any person from responsibility for damage to any person or property or impose any liability upon the County for damage to any person or property.
(a)
Grading permit; filing of application. Applications for permits shall be filed with the Community Development and Services Agency on forms furnished by that department. Each application shall include a plan-checking fee and other fees as required, grading plans and a statement of the intended use of the site. The Community Development and Services Agency shall determine whether the application is complete or whether additional information is required from the applicant. The applicant shall be notified within 20 working days, and provided outstanding requirements in writing if the application is deemed incomplete.
(b)
Grading permit; fees. The schedule of fees and costs shall be those established in Section 13.20.600 of the County Code. Before a permit is issued, the applicant shall deposit with the Community Development and Services Agency cash or a check, in a sufficient sum to cover the fee for issuance of the permit, charges for review of plans, specifications and reports, other engineering services, field investigations, necessary inspection or other work and routine laboratory tests of materials and compaction, all in accordance with schedules established and adopted by the Board.
(1)
Public utilities may, at the option of the Community Development and Services Agency, make payment for grading permit fees as billed instead of by advance deposit.
(2)
Any person, firm or corporation doing grading work in violation of this Chapter or when such work is not done in accordance with an approved permit, a fee covering investigation of any violation and inspection and plan checking of work required to correct such violation shall be charged to the violator to cover all actual costs and any permitting fees shall be double the regular fee.
(c)
Zoning clearance and compliance with CEQA. The California Environmental Quality Act (Public Resources Code § 21000 et seq.) (CEQA) and the Community Development and Services Agency may require the preparation of environmental documents concerning a proposed grading project. Any required review from the Environmental Health Department, or zoning clearance from the Planning Department must be completed before the grading permit application will be deemed complete.
(d)
Grading permit; notice to adjacent utility owners. Applicant shall contact Underground Service Alert (USA) prior to digging.
(e)
Grading permit; referral to other public agencies. The Community Development and Services Agency may refer an application to other interested public agencies for their recommendations. All grading plans on properties within Reclamation District 784 require review and approval of that District before a permit will be issued.
(f)
Grading permit; conditions. No permit shall be granted unless the project conforms to the Yuba County General Plan, any community or specific plans adopted thereto and applicable Yuba County ordinances including the zoning ordinance.
(1)
Where a proposed grading project requires the filing of a tentative map or the intended use requires approval, no grading permit shall be granted prior to approval by the applicable planning authority.
(2)
If the County has reasonable cause to believe that Federal and/or State permits may be necessary for the project, no County permit shall be granted until permits are obtained from those other agencies and copies of which shall be provided to the County. If no permits are required from other agencies, written notification from those agencies shall be submitted to the Community Development and Services Agency prior to County granting the permit.
(3)
The permit shall be limited to work shown on the grading plans as approved by the Community Development and Services Agency. In granting a permit, the Community Development and Services Agency may impose any condition deemed necessary to protect the health, safety and welfare of the public, to prevent the creation of a hazard to public or private property, prevent erosion and to ensure proper completion of the grading, including but not limited to:
a.
Mitigation of adverse environmental impacts as disclosed by any environmental document findings. This includes the proper disposal of any hazardous material identified in the initial planning phase. The Director of Environmental Health or the Director of the Office of Emergency Services will approve hazardous materials management;
b.
Improvement of any existing grading to comply with the standards of this Chapter;
c.
Requirements for fencing or other protections of grading which would otherwise be hazardous;
d.
Requirements for dust, erosion, sediment and noise control, and hours of operation and season of work, weather conditions, sequence of work, access roads and haul routes;
e.
Requirements for safeguarding watercourses, whether natural or man-made, from excessive deposition of sediment or debris in quantities exceeding natural levels;
f.
Requirements for safeguarding areas reserved for on-site sewage disposal;
g.
Assurance that the land area in which grading is proposed and for which habitable structures are proposed is not subject to hazards of land slippage or significant settlement or erosion and that the hazards of flooding can be eliminated or adequately reduced;
h.
Requirements for safeguarding existing water wells; and,
i.
Requirements for projects that fall within the MS4 boundary and that create or replace 2,500 square feet or more of impervious surface as specified in Chapter 7.50, Stormwater Quality.
(4)
Right of entry. As a condition of the permit, the property owner shall grant the County a right of entry for the duration of the permit until after final inspection. Whenever necessary to enforce the provisions of this Chapter, the Public Works Director or designee may enter the premises to perform any duty imposed by this Chapter.
(g)
Permission of other agencies or owners. No permit shall relieve the permittee of responsibility for securing other permits or approvals required for work which is regulated by any other department or agency of the County, state or federal government or other public agency, or for obtaining any easements or authorization for grading on property not owned by the permittee. Proof of issuance of applicable public agency permits may be required before the issuance of a grading permit.
(h)
Location of property lines. Whenever the location of a property line or easement or the title thereto is disputed during the application process or during a grading operation, a survey by a licensed land surveyor or civil engineer licensed to practice land surveying or resolution of title, all at the expense of the applicant, may be required by the Community Development and Services Agency.
(i)
Time limits.
(1)
The permittee shall perform and complete all the work required by the permit within time limits specified in the permit. If the work cannot be completed within the specified time, a request for an extension of time setting forth the reasons for the requested extension shall be presented in writing to the Community Development and Services Agency no later than 30 days prior to the expiration of the permit. The Community Development and Services Agency may grant additional time for the permitted work to be completed.
(2)
If all of the permit work required is not completed within the time limit specified in Subsection (I)(1) of this Section, no further grading shall be done without renewing the permit. A written request for renewal shall be submitted to the Public Works Director who may require a new application and fees depending upon the time between the expiration date and the renewal request, revisions in County regulations, and/or changed circumstances in the immediate area. Any revised plan shall be submitted to the Community Development and Services Agency for review, and any costs thereof shall be at the applicant's expense.
(j)
Grading permit; effect. The issuance of a permit or approval of plans and specifications shall not be construed as an approval of any violation of the provisions of this Chapter or of any other applicable laws, ordinances, rules or regulations.
(k)
Appeals. Appeals of decisions may be made pursuant to the procedures of Section 11.53.150, Appeals and Calls for Review.
(l)
Transfer. No permit issued under this Chapter may be transferred or assigned in any manner whatsoever, without the express written consent of the Community Development and Services Agency.
(m)
Grading prior to approval of improvement plans. Property owners who have an approved tentative map and wish to grade prior to the approval of the improvement plans shall submit an application for a grading permit and shall comply with the following requirements:
(1)
A separate grading plan shall be submitted for review and approval by the Community Development and Services Agency. This plan shall conform to the requirements of this grading ordinance and any applicable conditions placed on the project as a result of any formal discretionary permit process. The applicant shall acknowledge that any additional grading or revisions to work necessitated by conflicts discovered during the improvement plan check or subsequent construction will be corrected solely at the applicant's expense.
(2)
When deemed necessary by the Community Development and Services Agency, the property owner shall submit a revegetation and winterization plan for review and approval. This plan shall include a performance agreement with Yuba County which includes a specific schedule for performance of the subject grading, an engineer's estimate of cost for implementing the plan, and cash or other approved form of security to ensure the timely performance of the plan.
(3)
Plan check fees shall be required in full at time of plan submittal. Inspection fees shall be required in full prior to issuance of grading permit.
(4)
A drainage report shall be required as per the requirements of this grading ordinance and the Yuba County development standards.
(n)
Work completion.
(1)
The permittee shall notify the Community Development and Services Agency upon work completion and request a final inspection. All permitted grading activities shall be subject to final inspection by the Community Development and Services Agency.
(2)
Upon determination by the Public Works Director that all work has been completed in substantial conformance to the grading plan and associated requirements, a "Completion Notice" shall be issued by the Community Development and Services Agency.
(3)
Issuance of a "completion notice" does not relieve the permittee of responsibility for compliance with all grading permit requirements. Issuance of a "completion notice" should not be construed as modifying any permit requirements or relieving the permittee of responsibilities for satisfactory work completion.
(4)
No certificate of occupancy shall be issued for a permitted structure until the Public Works Director has issued a "completion notice" pursuant to this Section. The owner may be required to post an approved security with Public Works in sufficient amount, as determined by the Public Works Director, to ensure satisfactory completion of any ancillary work within a specified period of time.
(o)
Denial of other permits. No building permit, septic, electrical permit, or any other permit shall be issued by the County to any person for any premises or portion thereof which is in violation of this Chapter.
(a)
Grading plans.
(1)
Each application for a grading permit shall include the following:
a.
A completed application form;
b.
Two complete sets of grading plans. More may be required upon request;
c.
Profiles, cross sections, and specifications as required;
d.
A complete drainage report as required by the Community Development and Services Agency;
e.
The application fee as determined by the Board of Supervisors;
f.
Where applicable, evidence of coverage, or application for coverage, under an NPDES general construction permit;
g.
Storm Water Pollution Prevention Plan (SWPPP) with a State issued W.D.I.D. number, if applicable.
(2)
The plans and other documents will be reviewed by the Community Development and Services Agency. The applicant and/or project engineer will be notified of any necessary changes to the plans. When the plans and other documents have been approved by the Community Development and Services Agency, a grading permit will be issued for the project. All work must be done in strict conformance with the approved plans and documents. The approved plans shall not be changed or altered except in accordance with the provisions of this Chapter.
(b)
Engineer required. All plans and specifications shall be prepared and signed by a registered civil engineer, however the Community Development and Services Agency may waive this requirement if the proposed grading does not:
(1)
Endanger the public health, safety and welfare;
(2)
Require cuts and fills involving a combined total of 5,000 cubic yards of dirt or more;
(3)
Require cut or fill depths exceeding ten feet;
(4)
Include an access road serving five or more existing or potential residences;
(5)
Require a cut or fill that is situated so as to cause unduly increased soil pressure or reduce earth support upon adjacent structure or property;
(6)
Include the construction of any drainage or sediment control structures, culverts, or facilities or substantial alteration of any existing drainage course;
(7)
Include the creation or aggravation of an unstable slope condition;
(8)
Require construction of any retaining wall over four feet in height;
(9)
Include the construction of a vehicular bridge.
(c)
Engineered grading plans. Grading plans and specifications shall be prepared and signed by a registered civil engineer, as provided herein.
(1)
The plans shall include the following:
a.
All plans shall be on 24-inch by 36-inch sheets unless otherwise approved, and shall be drawn at a scale no less than one inch equals 100 feet;
b.
A title block. Plans shall be entitled "grading plan" and state the purpose of the proposed grading and the name of the engineer or firm by whom this plan is prepared, owner's name and address, and site address;
c.
A vicinity sketch (not at map scale) indicating the location of the site relative to the principal roads, lakes and watercourses in the area;
d.
North arrow and scale;
e.
A site plan indicating the extent of the work and any proposed divisions of land;
f.
The complete site boundaries and locations of any easements and rights-of-way traversing or adjacent to the property;
g.
The location of all existing or proposed roads, buildings, wells, pipelines, watercourses, septic systems or areas reserved for on-site sewage disposal, and any other structures, facilities, and features of the site, as well as the location of all improvements on lots within 50 feet of the proposed work;
h.
Location and nature of known or suspected soil or geologic hazard areas, including but not limited to serpentine rock areas, landslides, etc.;
i.
Accurate contour lines of the existing terrain and proposed finished grade at intervals not greater than five feet, or spot elevations 25 feet on center showing all topographic features and drainage patterns throughout the area where the proposed grading is to occur relative to a bench mark established on site. The contour lines/spot elevations shall be extended to a minimum of 50 feet beyond the affected area, and further, if needed, to define intercepted drainage, and shall be extended a minimum of 100 feet outside of any future road right-of-way. Contour lines or spot elevations shall be shown for all neighboring properties to verify surrounding drainage patterns;
j.
Approximate location of cut and fill line extents and finished slopes of all proposed grading and the limits of all proposed grading work, including borrow and stockpile areas;
k.
Location, width, direction of flow and approximate location of any watercourses including tops and toes of banks;
l.
Approximate boundaries of any areas with histories of flooding;
m.
Cross sections, profiles, elevations, dimensions, and construction details based on accurate field data;
n.
Construction details for roads, watercourses, culverts, bridges and drainage devices, retaining walls, cribbing, dams, and other improvements existing or to be constructed, together with supporting calculations and maps as may be required after initial review of plans;
o.
Proposed provisions for storm drainage control and any existing or proposed flood control facilities or septic tank disposal fields or areas reserved for on-site sewage disposal near the grading;
p.
A detailed erosion and sediment control plan including specific locations, construction details, and supporting calculations for temporary and permanent sediment control structures and facilities;
q.
A revegetation plan, including temporary erosion control plantings, permanent slope plantings, replacement of temporary groundcover, and irrigation facilities;
r.
All natural features including wetlands, vernal pools, swales, streams, oak woodlands and any other features protected by County, state or federal regulations;
s.
Any oak tree five inches or greater in diameter at breast height (DBH) proposed for removal;
t.
An estimate of the total quantities of excavation and fill, not net quantity;
(2)
Additional supporting information which may be required includes, but is not limited to:
a.
The location of any borrow site or location for disposal of surplus material;
b.
A projected schedule of operations, including, as a minimum, the dates of:
1.
Commencement of work,
2.
Start and finish of rough grading,
3.
Completion of drainage facilities,
4.
Completion of work in any watercourse,
5.
Completion of erosion and sediment control facilities,
6.
Completion of hydromulching and other landscaping. If rough grading is proposed between October 1 and April 30, a more detailed schedule of grading activities and use of erosion and sediment control facilities may be required;
c.
Itemized cost estimate of the proposed grading and related work;
d.
A complete drainage study in conformance with the Yuba County Standards and RD 784 Standards (when applicable);
e.
Geotechnical investigation report and recommendations addressing the proposed work.
(d)
Retention of approved plans. One set of approved plans and specifications shall be provided by the applicant, unless additional sets are requested, and retained by the Community Development and Services Agency.
(e)
Modification of approved plans.
(1)
Proposed modifications of an approved final plan shall be submitted to the Community Development and Services Agency in writing for approval, unless included in improvement plans submitted for approval.
(2)
All necessary soils and geological information and design details shall accompany any proposed modification.
(3)
The modification shall be compatible with any subdivision map or land use requirements.
(f)
Seasonal requirements. Implementation of erosion and sediment control plans shall be based on the season of the year and the stage of construction at forecasted periods of rainfall and heavy storms. Erosion and sediment control plans shall allow for possible changes in construction scheduling, unanticipated field conditions, and relatively minor changes in grading. Modifications to plans may be required after plan acceptance.
(a)
Geotechnical investigation required. A soil or geologic investigation report shall accompany the application in any of the following circumstances when required by the Public Works Director:
(1)
When the proposed grading includes a cut or fill exceeding ten feet in depth at any point; however, for vehicular ways, a soil investigation shall not be required unless the grading includes a proposed cut or fill that exceeds ten feet in depth and the slope of the natural ground exceeds 30 percent;
(2)
When highly expansive soils are present; and
(3)
In areas of known or suspected geological hazards, including landslide hazards and hazards of ground failure stemming from seismically induced ground shaking.
(b)
Required investigators; basis of investigations.
(1)
Those portions of the soil or geologic investigation that constitutes "civil engineering" as defined by Business and Professions Code § 6734 shall be conducted by or under the direct supervision of a registered geotechnical engineer or a registered civil engineer. Those portions of the investigation that involve the practice of "geology" as defined by Business and Professions Code § 7802 shall be conducted by an engineering geologist.
(2)
The investigations shall be based on observations and tests of the material exposed by exploratory borings or excavations and inspections made at appropriate locations. Additional studies may be necessary to evaluate soil and rock strength, the effect of moisture variation on soil, bearing capacity, compressibility, expansiveness, stability, keying, subdrainage benching and other factors. Grading factors such as moisture variability, ability to compact the material when wet, etc., should be evaluated.
(c)
Supplemental reports and data. Any soil or geologic investigation report shall be subject to the approval of the Community Development and Services Agency who may require supplemental reports and data. Recommendations included in the reports and approved by the Community Development and Services Agency shall be incorporated in the final plans and specifications.
(d)
Soil/geologic investigation report. The soil or geologic investigation report shall contain all of the following, as they may be applicable to the subject site:
(1)
An index map showing the regional setting of the site;
(2)
A site map which shows the topographic features of the site and locations of all soil borings and test excavations;
(3)
A classification of the soil types (unified soil classification), pertinent laboratory test data and consequent evaluation regarding the nature, distribution, and strength of existing soils;
(4)
A description of the geology of the site and geology of the adjacent areas when pertinent to the site;
(5)
A suitably scaled map and cross sections showing all identified areas of land slippage;
(6)
A description of any encountered groundwater or excessive moisture conditions;
(7)
A description of the soil and geological investigative techniques employed;
(8)
A log for each soil boring and test excavation showing elevation at ground level and the depth of each soil or rock strata;
(9)
An evaluation of the stability of pertinent natural slopes and recommendations regarding maximum cut and fill slopes of proposed work;
(10)
An evaluation of settlement associated with the placement of any fill;
(11)
Recommendations for grading procedures and specifications, including methods for excavation and subsequent placement of fill;
(12)
Recommendations regarding surface and subsurface drainage and erosion control;
(13)
Recommendations for mitigation of geologic hazards.
(e)
Final report. Upon completion of rough grading work, in the event a complete record of the work is desired or necessary, the Community Development and Services Agency may require a final geotechnical report that includes, but is not limited to the following:
(1)
A complete record of all field and laboratory tests including location and elevation of all field tests;
(2)
A professional opinion regarding slope stability, soil bearing capacity, and any other pertinent information;
(3)
Recommendations regarding foundation design, including soil bearing potential and building restrictions or setbacks from the top or toe of slopes;
(4)
A declaration by the geotechnical engineer, civil engineer or engineering geologist in the format required by the Community Development and Services Agency that all work was done in substantial conformance with the recommendations contained in the soil or geologic investigation reports as approved and in accordance with the approved plans and specifications.
(f)
Changed conditions. Where soil or geologic conditions encountered in the grading operation deviate from that anticipated in the soil and geologic investigation reports or where such conditions warrant changes to the recommendations contained in the original soil investigation, a revised soil or geologic report shall be submitted for the approval of the Community Development and Services Agency.
(g)
Special inspection.
(1)
As a condition of the permit, the Community Development and Services Agency may require the permittee to retain a private geotechnical engineer or civil engineer to directly supervise or perform continuous inspection work, and upon completion of the work to provide a written statement acknowledging that he or she has inspected the work and that in his or her professional judgment the work was performed in accordance with the approved plans and specifications. The permittee shall make his or her own contractual arrangements for such services and shall be responsible for payment of all costs. Continuous inspection by a geotechnical engineer or civil engineer shall include, but not be limited to, the following situations:
a.
During the preparation of a site for the placement of fills which exceed five feet in depth on slopes which exceed ten percent and during the placing of such fills; however, for vehicular pathways, fill placement shall be continuously inspected when fills exceed ten feet in height;
b.
During the preparation of a site for the placement of any fill which is intended to support any building or structure when the fill exceeds three feet in depth;
c.
During the installation of subsurface drainage facilities.
(2)
Reports filed by the private geotechnical engineer or civil engineer regarding special inspection shall confirm in writing that from his or her personal knowledge the work performed during the period covered by the report has been performed in substantial accordance with the approved plans and specifications.
(3)
The use of a private geotechnical engineer or civil engineer for inspections shall not preclude the Community Development and Services Agency from conducting inspections or from authorizing inspections by other qualified inspectors as may be necessary.
(h)
Noncompliance notification by private geotechnical engineer or civil engineer. The permittee shall cause the work to be done in accordance with the approved plans. If, during the course of construction, the private geotechnical engineer or civil engineer finds that the work is not being done substantially in accordance with the approved plans and specifications, he or she shall immediately notify the person in charge of the work and the Community Development and Services Agency of the non-conformity and the corrective measures to be taken. When changes in the plans are required, he or she shall prepare or cause to be prepared such proposed changes and submit them to the Community Development and Services Agency for approval.
(i)
Periodic progress reports by private geotechnical engineer or civil engineer. As a condition of the permit, periodic progress reports shall be rendered by the private geotechnical engineer or civil engineer as required by the Community Development and Services Agency including, but not limited to, laboratory tests, slope stability, placement of materials, retaining walls, drainage, utilities and any special permit or plan requirements.
(j)
Progress report by permittee. Periodic progress reports shall be rendered by permittee on specified calendar dates and at commencement and completion of major key grading and erosion and sediment control operations. The dates of operations upon which such reports are required and their content shall be as required in the permit by the Community Development and Services Agency.
(k)
Record drawings. Permittee shall submit to the Community Development and Services Agency a record drawing of the final grading following completion of the work, if requested.
(l)
Performance of work; inspection/certification.
(1)
The Community Development and Services Agency may inspect any work, or require certification by private engineer of any work, done under a grading permit. County inspections will continue and no permittee shall be deemed to have complied with this Chapter unless one of the following has occurred:
a.
After receiving a Notice of Termination signed by the State of California (if applicable), a final inspection has been performed by the Yuba County Public Works Department with the work done under the grading permit accepted as complete; or
b.
Certification of completion by the civil engineer, or the geotechnical engineer of record, has been submitted to and accepted by the Public Works Director; or
c.
The final inspection has been waived in writing by the Public Works Director.
(2)
The permittee shall provide adequate access to the site for inspection by the Community Development and Services Agency during the performance of all work and for a minimum period of one year after completion of the work.
(3)
If the engineer of record is changed during the grading, the work shall be stopped until the replacement engineer has agreed in writing to accept his responsibility within the area of technical competence for approval upon completion of the work. It shall be the duty of the permittee to notify the Public Works Director in writing of such change prior to the recommencement of such grading.
(4)
Owner, developer, and contractor are responsible for the maintenance of all erosion and sediment control measures using best management practices on the project site until accepted as complete by Public Works Department.
(m)
Other responsibilities of permittee. The permittee shall also be responsible for the following:
(1)
Protection of utilities. The permittee shall be responsible for the prevention of damage to any public utilities or services. Contractor shall notify USA North, and all other facility owners that are not members of USA North, two working days in advance of any digging. Also, see Section 2.8 of the County of Yuba Standard Specifications.
(2)
Protection of adjacent property. The property owner is responsible for the prevention of damage to adjacent properties. No person(s) shall excavate or fill on land sufficiently close to the property line to endanger any adjoining public street, sidewalk, alley or other public or private property, or easement, without supporting and protecting such property from damage which may result.
(3)
Advance notice. The permittee shall notify the Community Development and Services Agency at least 48 hours prior to the start of work.
(4)
Erosion and sediment control. It shall be the responsibility of the permittee to control discharge of sediment from the site to any watercourse, drainage system, or adjacent property and to protect watercourses and adjacent properties from damage by erosion, flooding or deposition of sediment which may result from the permitted grading.
(5)
Hazardous materials control. It shall be the responsibility of the permittee to prevent discharge of hazardous materials from the site to any watercourse, drainage system, or adjacent property, and to protect watercourses and adjacent properties from damage by hazardous materials, which may result from the permitted grading.
(a)
Excavations. Excavations shall be constructed or protected so that they do not endanger life, limb or property.
(b)
Excavation slope. The slope of cut surfaces of permanent excavations shall not be steeper than two feet horizontal to one foot vertical (2:1) exclusive of terraces and exclusive of rounding described herein. Steeper slopes will be permitted in competent bedrock provided such slope inclinations are in accordance with recommendations contained in the geotechnical or geological report. The bedding planes, foliation planes or principal joint sets in any formation when dipping towards the cut face shall not be day lighted by the cut slope unless the soils and geologic investigations contain recommendations for steeper cut slopes. Cut slopes shall be rounded into the existing terrain to produce a contoured transition from cut face to natural ground. Slopes no steeper than three feet horizontal to one foot vertical (3:1) may be required by the Community Development and Services Agency.
(c)
Placement of fill. Fills shall be constructed in layers. The loose thickness of each layer of fill material before compaction shall not exceed 12 inches. Completed fills shall be stable masses of well-integrated material bonded to adjacent materials and to the materials on which they rest. Fills shall be competent to support anticipated loads and be stable at the design slopes shown on the plans. Proper surface and subsurface drainage and other appropriate measures shall be taken to ensure the continuing integrity of fills. Earth materials shall be used which have no more than minor amounts of organic substances and have no rock or similar irreducible material with a maximum dimension greater than 12 inches. Larger material may be used with the approval of the Community Development and Services Agency and the geotechnical engineer.
(d)
Compaction of fill. All fills shall be compacted throughout their full extent to a minimum of 90 percent of maximum density as determined by the appropriate Caltrans standard method or other alternate methods approved by the Community Development and Services Agency. Tests to determine the density of compacted fills shall be made on the basis of not less than one test for each two-foot vertical lift of the fill but not less than one test for each 1,000 cubic yards of material placed. More frequent testing may be required by the Community Development and Services Agency. Additional density tests at a point approximately one foot below the fill slope surface shall be made on the basis of not less than one test for each 1,000 square feet in slope surface but not less than one test for each ten-foot vertical increase of slope height. All tests shall be reasonably uniformly distributed within the fill or fill slope surface. Results of such testing and location of tests shall be presented in the periodic and final reports. Compaction may be less than 90 percent of maximum density, as determined by the above test, within six inches of the slope surface when such surface material is placed and compacted by a method acceptable to the Community Development and Services Agency for the planting of the slopes. Compaction of temporary stockpile fills, to be used for a period of not greater than six months, shall not be required, except where the Community Development and Services Agency determines that compaction is necessary as a safety measure to aid in preventing saturation, sliding, or erosion of the fill. Higher compaction densities will be required for roads.
(e)
Ground preparation for placement of fill. The natural ground surface shall be prepared to receive fill by removing vegetation, noncomplying fill, top soil, and other unsuitable material, and where slopes are six feet horizontal to one foot vertical (6:1) or steeper, by benching into competent material in a manner acceptable to the Community Development and Services Agency. The keyway under the toe, if specified, shall be at least 15 feet wide unless otherwise approved by the Public Works Director.
(f)
Fill slopes. The slope of permanent fills shall not be steeper than two feet horizontal to one foot vertical (2:1), exclusive of terraces and exclusive of roundings described herein, unless a soils report supports a steeper slope as recommended by the geotechnical engineer. The Community Development and Services Agency may require that the fill be constructed with an exposed surface flatter than two feet horizontal to one foot vertical (2:1) or may require such other measures as he or she deems necessary for stability and safety.
(g)
Adjacent structures protection. Footings which may be affected by any excavation shall be underpinned or otherwise protected against settlement and shall be protected against lateral movement. Fills or other surcharge loads shall not be placed adjacent to any building or structure unless such building or structure is capable of withstanding the additional loads caused by such fill or surcharge. The rights of coterminous owners shall be as set forth in Civil Code § 832.
(h)
Setbacks. Unless otherwise recommended in this Chapter or in a soil or geologic investigation report and accepted by the Community Development and Services Department, this Code, and the latest County adopted version of the California Building Code shall be used for establishing setbacks for property boundaries, buildings and structures other than fences and retaining walls.
(i)
Drainage; structures or devices. Any drainage structure(s) or device(s) carrying surface water runoff required by this Chapter shall be designed and constructed in accordance with standards herein, the Yuba County Stormwater Quality Ordinance (Chapter 8.28), the Yuba County Standard Specifications and criteria authorized by the Public Works Director.
(j)
Drainage; discharge requirements.
(1)
All drainage facilities shall be designed and engineered to carry surface and subsurface waters to the nearest adequate street, storm drain, natural watercourse, or other juncture.
(2)
For engineered grading projects, the peak off-site storm water discharge from the project site shall not exceed pre-construction conditions unless the applicant demonstrates that downstream storm water conveyance systems have sufficient capacity to handle the increased flow rate without exceeding established design standards.
(k)
Drainage; water accumulation. All areas shall be graded and drained so that drainage will not cause erosion or endanger the stability of any cut or fill slope or any building or structure.
(l)
Drainage; protection of adjoining property. Discharging surface drainage onto neighboring properties shall be into historical drainage patterns and in such a manner that will not cause erosion or endanger any cut or fill slopes or any building or structure. Grading activities shall not redirect surface drainage from the site onto neighboring private properties that historically did not receive the drainage. Grading activities shall also not block or prevent drainage from neighboring properties that historically drained onto the property being graded.
(m)
Drainage; terrace drainage. Terraces at least eight feet in width shall be established at not more than 25 feet in height intervals for all cut and fill slopes exceeding 30 feet in height. Where only one terrace is required, it shall be at approximately mid-height. Suitable access shall be provided to permit proper cleaning and maintenance of terraces and terrace drains. Swales or ditches on terraces shall have a minimum depth of one foot, a minimum longitudinal grade of four percent, and a maximum longitudinal grade of 12 percent. Down-drains or drainage outlets shall be provided at approximately 300-foot intervals along the drainage terrace. Down-drains and drainage outlets shall be of approved materials and of adequate capacity to convey the intercepted waters to the point of disposal. If the drainage discharges onto natural ground, adequate erosion protection shall be provided.
(n)
Drainage; subsurface drainage. Cut and fill slopes shall be provided with surface and/or subsurface drainage as necessary for stability.
(o)
Erosion and sediment control.
(1)
Regardless of whether or not a grading permit is required, all grading and earthwork activities within unincorporated Yuba County shall employ best management practices to minimize erosion and to control sediment discharges to the maximum extent practicable in accordance with Yuba County standards, acceptable industry standards, and the most recently adopted version of the State Water Resources Control Board's "General Permit for Discharge of Storm Water Associated with Construction Activities."
(2)
The following shall apply to the control of erosion and sediment from grading operations:
a.
Grading plans shall be designed with long-term erosion and sediment control as a primary consideration. Erosion prevention and source control are to be emphasized over sediment controls and treatment.
b.
Grading operations shall provide erosion and sediment control measures, except upon a clear demonstration, to the satisfaction of the Community Development and Services Agency that at no stage of the work will there be any substantial risk of increased sediment discharge from the site. Temporary mulch, revegetation, or other stabilization methods shall be applied to areas where permanent revegetation or landscaping cannot be immediately implemented. Unless otherwise exempted in this Chapter, grading activity must be scheduled to ensure completion or winterization by October 1 of each year.
c.
Grading activity shall be conducted such that the smallest practicable area of erodible land is exposed at any one time during grading operations and the time of exposure is minimized. Land disturbance shall be limited to the minimum area necessary for construction.
d.
Natural features, including vegetation, terrain, watercourses and similar resources shall be protected and preserved wherever possible. Limits of grading shall be clearly defined and marked to prevent damage by construction equipment.
e.
Permanent vegetation and structures for erosion and sediment control shall be installed as soon as possible.
f.
Adequate provision shall be made for effective maintenance of temporary and permanent erosion and sediment control structures and vegetation. Sediment and other construction-related wastes shall be retained and properly managed on the site or properly disposed of off-site.
g.
Community Development and Services Agency may require that no topsoil shall be removed from the site. Topsoil overburden shall be stockpiled and redistributed where appropriate within the graded area after rough grading to provide a suitable base for seeding and planting. Runoff from the stockpiled area shall be controlled to prevent erosion and resultant sedimentation of receiving water.
h.
Runoff shall not be discharged from the site in quantities or at velocities substantially above those which occurred before grading except into drainage facilities, whose design has been specifically approved by the Community Development and Services Agency.
i.
The permittee shall take reasonable precautions to ensure that vehicles do not track or spill earth materials into public streets and shall immediately remove such materials if this occurs.
j.
All cut and fill slopes shall be adequately stabilized to prevent erosion and failure through temporary and permanent means.
k.
Control measures shall be employed to prevent transport of dust off the project site or into any drainage course or water body.
l.
Following construction, property owners shall maintain sedimentation and erosion control measures as may be required to reduce off-site discharges of sediment to the maximum extent practicable. As provided for in Section 11.23.080, Improvement Security Required, of this Chapter, the Community Development and Services Agency may require posting of security to ensure adequate development of necessary erosion and sedimentation control measures, including vegetative cover on cut and fill slopes.
(p)
Erosion and sediment control plans. Erosion and sediment control plans prepared pursuant to this Chapter shall comply with all of the following:
(1)
The erosion and sediment control plan need not be a separate sheet if all facilities and measures can be shown on the grading sheets without obscuring the clarity of either the grading plan or the erosion and sediment control plan.
(2)
An erosion and sediment control plan shall be required whenever:
a.
The graded portion of the site includes more than 10,000 square feet of area having a slope greater than ten percent;
b.
Clearing and grubbing areas of one acre or more regardless of slope;
c.
There is a significant risk that more than 2,500 square feet will be unprotected or inadequately protected from erosion during any portion of the rainy season;
d.
Grading will occur within 50 feet of any watercourse;
e.
The Community Development and Services Agency determines that the grading will or may pose a significant erosion, or sediment discharge hazard for any reason.
(3)
Sediment and erosion control measures must be in place or be capable of being placed within 24 hours, in the opinion of the Public Works Director, by October 1 or before any rain event. The Public Works Director may require suspension of any and all grading activities between October 1 and May 1 without prior notice.
(4)
Erosion and sediment control plans shall include an effective revegetation program to stabilize all disturbed areas, which will not be otherwise protected. All such areas where grading has been completed between April 1 and October 1 shall be planted by November 1. Graded areas completed at other times of the year shall be planted within 15 days of final soil disturbance or as approved by the Public Works Director. If revegetation is infeasible or cannot be expected to stabilize an erodible area with assurance during any part of the rainy season and the unstable area exceeds 2,500 square feet, additional erosion and sediment control measures or irrigation of planted slopes may be required as appropriate to prevent increased sediment discharge.
(5)
Erosion and sediment control plans shall be designed to prevent increased discharge of sediment at all stages of grading and development from initial disturbance of the ground to installation of all post-construction requirements at project completion. Every feasible effort shall be made to ensure that site stabilization is permanent. Plans shall indicate the implementation period and the stage of construction where applicable.
(6)
Erosion and sediment control plans shall comply with the recommendations of the responsible civil engineer, geotechnical engineer, engineering geologist, or landscape architect involved in preparation of the grading plans.
(7)
The structural and hydraulic adequacy of all stormwater containment or conveyance facilities shown on the erosion and sediment control plans shall be verified by a registered civil engineer, and he or she shall so attest on the plans. Sufficient calculations and supporting material to demonstrate such adequacy shall accompany the plans when submitted.
(8)
Erosion and sediment control plans shall be designed to meet anticipated field conditions.
(9)
Erosion and sediment control plans shall provide for inspection and repair of all erosion and sediment control facilities at the close of each working day during the rainy season and for specific sediment cleanout and vegetation maintenance criteria.
(10)
Erosion and sediment control plans shall comply with any and all standards and specifications adopted herein for the control of erosion and sedimentation on grading sites.
(q)
Emergency conditions. Should increased sediment discharge occur or become imminent, the permittee shall take all necessary steps to control or reduce such discharge. Such steps may include construction of additional facilities or removal or alteration of facilities required by approved erosion and sediment control plans. Facilities removed or altered shall be restored as soon as possible afterward or appropriate changes in the plan shall be immediately required pursuant to this Chapter. The permittee shall take prompt action to resolve emergency problems; otherwise the Community Development and Services Agency may institute abatement proceedings pursuant to provisions of Section 11.23.080, Improvement Security Required.
(r)
Vehicular ways. Vehicular ways shall conform to the grading requirements of this Chapter. Vehicular ways shall be graded and drained in such a manner that will not allow erosion or endanger the stability of any adjacent slope. Surface discharge onto adjoining property shall be controlled in such a manner that it does not cause erosion or endanger existing improvements. Bridges and culverts installed in watercourses must be reviewed by the Community Development and Services Agency and must be approved by the Public Works Director or designee and any other required permitting agency.
(a)
As a condition for the issuance of a permit, the Community Development and Services Agency may require the deposit of improvement security in sufficient amount deemed necessary to ensure performance of the work in the event of default on the part of permittee.
(b)
For all projects, the improvement security shall remain in effect until final inspections have been made and all grading work has been approved by the Community Development and Services Agency.
(c)
In addition to the improvement security, the Community Development and Services Agency may also require the deposit of maintenance security in sufficient amount deemed necessary to guarantee and maintain the grading work and to ensure the proper functioning of drainage systems and adequate erosion and sedimentation control. Such maintenance security shall be in a form acceptable to Yuba County and shall remain in effect for a period of one year after the date of acceptance of the improvements as designated in Subsection (b) above and this Subsection (c).
(d)
Required securities shall be in the form of cash, a certified or cashier's check, a letter of credit, a faithful performance bond executed by the applicant and a corporate surety authorized to do business in this State, or other instrument approved by the Community Development and Services Agency. All securities shall be payable to the Yuba County Community Development and Services Agency.
(e)
Upon satisfaction of applicable provisions of this Chapter, the improvement and maintenance security deposits will be released. However, upon failure to complete the work, failure to comply with all of the terms of the permit, or failure of the completed site to function properly to provide proper drainage or erosion and sedimentation control, the County may do the required work, or cause it to be done and collect from the permittee, or surety, all costs incurred thereto, including administrative, inspection and legal costs.
Violations of this Chapter shall be enforced pursuant to Chapter 11.67, Enforcement and Abatement Procedures.
(1)
Investigation fees; work without a permit. Whenever any work for which a permit is required by this Chapter has been commenced without first obtaining the permit, the Public Works Director shall require an investigation before issuing a permit for such work. In this case, the violator shall be charged for the department's labor and costs incurred during the investigation, in addition to paying double the standard permit fees.
The purposes of the landscaping regulations are to:
(1)
Create an aesthetically pleasing boundary between residential, commercial and industrial uses and roadways;
(2)
Promote development of an attractive, aesthetically pleasing environment;
(3)
Screen undesirable views and help define and organize public and private spaces;
(4)
Improve the air quality by replenishing oxygen and reducing smog;
(5)
Conserve energy by shading homes, commercial and industrial buildings, roads, and parking lots;
(6)
Improve property values by improving the appearance of the community;
(7)
Promote business and industry by improving image and public acceptance;
(8)
Ensure consistency with State law, including the Water Conservation in Landscaping Act of 2006 (AB 1881 also known as the California Model Water Efficient Landscape Ordinance);
(9)
Require ongoing maintenance of landscaping; and
(10)
Provide information so that plant materials can be appropriately selected and properly used.
The standards of this Chapter apply to all new development, additions (other than to single-unit dwellings or duplexes) that expand existing floor area by 25 percent or more, or changes in use excluding landscaping that is part of a registered historic site, plant collections as part of botanical gardens and arboretums open to the public, or ecological restoration projects that do not require a permanent irrigation system. In addition, projects are also subject to the landscape guidelines provided in the Yuba County Design Guidelines.
(a)
Street facing property lines.
(1)
Residential developments. All front and street-side yard setback areas shall be landscaped. At least one deciduous street tree from the approved tree list shall be planted per 40 lineal feet of frontage. Where detached sidewalks are provided, landscaping and street trees shall be provided in the area between the sidewalk and curb.
(2)
Development in commercial and mixed-use districts, industrial districts, and public, semi-public, and special use districts.
a.
A perimeter planter at least five feet wide, excluding curbing, shall be provided adjacent to street rights-of-way and buildings with exception of the downtown core district. Where parking is located adjacent to a public right-of-way, the landscape planter shall be at least ten feet wide with the exception of mixed-use corridors identified in the General Plan. Along the mixed-use corridors identified in the General Plan, alternative landscape plans for street frontages that include a combination of tree wells, landscape planters, plaza/seating areas, outdoor furniture, and/or public art may be approved as part of a streetscape plan or individual project design.
b.
Any area within the street right-of-way between the edge of the sidewalk or road shoulder and outer edge of the property shall be landscaped with trees, shrubs, and groundcover, unless the requirement is waived by the Public Works Director.
c.
At least one deciduous street tree from the approved tree list (see Yuba County design guidelines) shall be planted per 40 lineal feet of frontage. Trees shall be planted pursuant to the Street Tree Specifications listed in the Yuba County Standards Manual.
d.
Within the downtown core district, new developments shall provide and maintain irrigated planter boxes, trees within irrigated tree wells and/or decorative pots with plants adjacent to the front building facade.
(b)
Interior property lines abutting residential district or uses. Wherever a non-residential use is located adjacent to a residential district, a landscaped area at least ten feet wide shall be provided along interior property lines. The landscaped area shall include a mix of trees and shrubs with at least 50 percent consisting of evergreen species and at least one tree shall be planted per 30 lineal feet. When appropriate, paseos or other pedestrian access points within the landscape area may be approved through the design review permit. In certain circumstances, walls may also be required for noise attenuation or to address potential safety or compatibility issues.
Figure 11.24.030(b): Interior Property Lines
(c)
Building perimeters. The portions of a nonresidential building that front a parking area or plaza shall have one or more landscape planters installed along a minimum 20 percent of such building face(s). The minimum width of the planter shall be five feet.
Figure 11.24.030(c): Building Perimeters
(d)
Parking lot. Parking areas shall be landscaped according to the requirements of Section 11.25.100, Design Standards for Parking Lots.
(a)
Agricultural districts, rural community districts, and natural resource districts that have commercial, industrial, public/semi-public, ranch marketing, or transportation uses shall provide landscaping in the following areas:
(1)
Parking areas abutting public roads shall provide a minimum five-foot wide landscape planter adjacent to the right-of-way except where driveways are installed. Within the planter there shall be at least one tree planted in an irrigated and landscaped area for each 40 feet of street frontage.
a.
Required landscaping shall include varied tree and plant species with focus on native plant species. Landscape areas not covered with live plant material shall be covered with gravel, landscaping rock, concrete, decomposed granite, or other fire-resistant material.
(2)
Where paved parking areas are required, landscape planters shall be provided as outlined in Section 11.25.100.(2)m, Parking Lot Landscaping.
(3)
Landscape planters may be required as determined through a discretionary permit to address noise, safety, or compatibility issues with adjacent properties.
(a)
Applicability. This Section shall apply to all zone districts and projects that are subject to the landscape requirements listed in Sections 11.24.030 and 11.24.040.
(b)
Minimum dimension of landscaped areas. For non-residential projects, no landscape planter that is to be counted toward the required landscape area shall be smaller than 25 square feet in area, or three feet in any horizontal dimension, excluding curbing.
(c)
Visibility. Trees and shrubs shall be planted and maintained so that at maturity they do not interfere with traffic safety sight areas, or public safety, and so that they comply with Section 11.19.130, Visibility at Intersections and Driveways. In the case of a conflict between landscaping requirements and requirements of Section 11.19.130, Visibility at Intersections and Driveways, the visibility requirements shall govern.
(a)
Applicability. This Section shall apply to all zone districts and projects that are subject to the landscape requirements listed in Sections 11.24.030 and 11.24.040.
(b)
General. Landscaping shall consist of live plant materials and may include a combination of groundcovers, shrubs, vines, and trees. Landscaping may also include incidental features such as artificial turf, stepping stones, benches, fountains, sculptures, decorative gravel or stones, or other ornamental features, placed within a landscaped setting (benches, sculptures, and similar items shall not be located within residential greenway strips).
(1)
Plants having similar water use shall be grouped together.
(2)
No more than 35 percent of any required landscaped area may be covered with hard surfaces such as concrete, gravel, landscaping rock, paving stones, brick, or similar materials that are void of live plant materials.
a.
For non-residential projects, driveways and drive aisles are not considered as part of the required landscape area. For residential projects, driveways less than 30 feet wide and less than 50 percent of the width of the lot are not considered part of the required front yard or street-side landscape areas. Refer to Public Works Standard Plans and Specifications for Standards Driveways Plans.
b.
Artificial turf. Artificial turf may be utilized as part of the landscape plan when it meets the following criteria:
1.
Shall be installed over soil and include a drainage system that allows for water infiltration to reduce run-off.
2.
When installed in areas that require the inclusion of trees (i.e. greenway strips, residential front and street side yards) the required trees and irrigation shall be incorporated into the artificial turf area.
3.
Shall not be utilized on slopes over 25 percent.
4.
Shall not comprise over 50 percent of total required landscape area.
c.
Landscape area that utilize hard surfaces but contain live plant material that will provide at least 60 percent coverage of the landscape area at maturity will not count against the 35 percent restriction on hardscape areas.
1.
Non turf landscape areas that utilize bark shall also include live plant material that will provide at least 60 percent coverage of the landscape area at maturity.
(3)
Plant materials shall be selected from among those species and varieties known to thrive in the Yuba County climate and selected from the Approved Tree List and Recommended Ground Cover and Shrub List.
(4)
Gardens and other areas dedicated to edible plants are considered landscaped areas and count toward required landscaping.
(5)
Installation of invasive plant species is prohibited as listed in the California Invasive Plant Council (Cal-IPC) list of Exotic Pest Plants of Greatest Ecological Concern in California.
(6)
Ground cover. Groundcover may include grasses (except as limited by any applicable turf/sod allowance). The use of mulch is encouraged to prevent weeds and water evaporation but is not a substitute for ground cover plants.
a.
Species and varieties. Whenever practicable, ground covers shall be selected from the Recommended Ground Cover and Shrub List.
b.
Size. Ground cover plants other than grasses must be at least the four-inch pot size at the time of planting.
c.
Spacing. Areas planted in ground cover plants other than grass seed or sod must be planted at a rate of one per 12 inches on center.
Figure 11.24.060(a)(6): Ground Cover Spacing
(7)
Shrubs.
a.
Species and varieties. Whenever practicable, shrubs shall be selected from the Recommended Ground Cover and Shrub List.
b.
Size. Shrubs shall be at least one-gallon size at the time of planting.
c.
Spacing. When planted to serve as a hedge or screen, shrubs shall be planted with two to six feet of spacing, depending on the recommendations for the species and variety.
(8)
Trees.
a.
Existing trees. Existing healthy trees shall be maintained whenever possible and may be used in lieu of planting new trees.
b.
Setbacks. Trees shall be planted away from public sidewalks or individual driveways in accordance with the minimum setbacks specified in the Approved Tree List.
c.
Size. At the time of planting, all trees shall be a minimum 15-gallon size with a one-inch diameter at breast height (DBH).
d.
Staking. Newly planted trees shall be supported with stakes or guy wires in conformance with Yuba County Department of Public Works Street Tree Planting Specifications.
Figure 11.24.060(a)(8): Tree Staking
(9)
Mulch. A minimum three-inch layer of mulch and landscape fabric for weed control shall be applied on all exposed soil surfaces of planting areas except in turf areas, creeping or rooting ground covers, or other special planting situations in which mulch is not recommended (i.e. in high fire severity zones). Stabilizing mulching products shall be used on slopes. Highly flammable mulches (i.e. finely shredded bark and plant fibers. pine needles, and shredded rubber) are prohibited in production housing, non-residential projects, medians, greenway strips, parking strips, and common areas.
(10)
Water features. Where water features are utilized they shall include the following:
a.
Recirculating water systems;
b.
Shall be included in the high water use hydrozone area of the water budget calculations; and
c.
Pool and spa covers are highly recommended.
The purpose of this Section is to comply with the Water Conservation in Landscaping Act of 2006.
(1)
Applicability. This Section shall apply to all of the following:
a.
New development projects with an aggregate landscape area equal to or greater than 500 square feet requiring a building or landscape permit, plan check or design review permit.
b.
Rehabilitated landscape projects with an aggregate landscape area equal to or greater than 2,500 square feet requiring a building or landscaping permit, plan check, or design review permit.
c.
This Section does not apply to the following types of projects:
1.
Registered local, state or federal historical sites;
2.
Ecological restoration projects that do not require a permanent irrigation system;
3.
Mined-land reclamation projects that do not require a permanent irrigation system; or
4.
Existing plant collections, as part of botanical gardens and arboretums open to the public.
(2)
Production housing. Where developer installed landscaping is only provided within the front yard and street side portions of the parcel; the front yard landscaping plan shall demonstrate compliance with Section 11.24.060. (Landscape Materials) and Section 11.24.070 (Water Efficient Landscape Requirements) regardless of the size of the front yard landscape area.
(3)
Compliance requirements. Any project with an aggregate landscape area of 2,500 square feet or less may comply with the prescriptive performance requirements listed below. The aggregate landscape area includes all required landscape areas identified in Sections 11.19.030 and 11.19.040 along with any additional landscaped areas that are irrigated. Projects that exceed 2,500 square feet of aggregate landscape area or that wish to demonstrate alternative compliance shall meet the requirements established in Section 11.24.060(d), Alternative Compliance.
a.
Areas landscaped with live plant material shall incorporate compost at a rate of at least four cubic yards per 1,000 square feet to a depth of six inches (unless contra-indicated by a soil test).
b.
Exclusive of vegetable and edible flower garden areas, at least 75 percent of all plants and trees within residential projects and 100 percent for non-residential projects must be native or low water use. Landscape areas that utilize recycled water are excluded from this requirement.
c.
Turf. Non-artificial turf shall comply with the following:
1.
Within residential projects, a maximum of 25 percent of the required landscape areas shall be turf or planted with other high water use plants.
2.
Within non-residential projects turf is prohibited except for turf areas that are irrigated with recycled water or comprise an essential component of a project (i.e. golf courses, picnic areas, or playing fields), which are exempt from this limit.
3.
The installation of turf on slopes greater than 25 percent is prohibited (one foot vertical elevation change for every four feet of horizontal).
4.
Turf areas shall be of a size and design to prevent overspray of irrigation onto hardscape areas.
5.
Turf is prohibited in greenways that are less than ten feet wide, unless the greenway is adjacent to a parking strip and used to enter and exit vehicles. Any turf in greenways must be irrigated by a sub-surface irrigation system or by other technology that creates no overspray or runoff.
6.
Turf and high-water use plants are prohibited in street medians.
(4)
Alternative compliance. This Section shall apply to all projects with an aggregate landscape area over 2,500 square feet or when an applicant wants to demonstrate that the intent of the landscape requirements of this Chapter can be achieved through an Alternative Landscape Plan. Alternative Landscape Plans shall be prepared by a California Registered Landscape Architect. The Alternative Landscape Plan shall be prepared in accordance with the principles and design criteria set forth in this Section and shall clearly describe the modifications being requested from the provisions of this Section and how they reflect the evaluation criteria listed below:
a.
Innovative use of plant materials and design techniques in response to unique characteristics of the site or the proposed use.
b.
Preservation or incorporation of existing native vegetation.
c.
Incorporation of naturalistic design principles, such as variations in topography, meandering or curvilinear plantings, and grouping of dominant plant materials (trees, large shrubs) in a manner consistent with existing native vegetation.
d.
Integration of landscaping and pedestrian facilities in a manner that improves access or incorporates pedestrian-friendly design. This may include reduced ground-level planting along the front setback if canopy shade trees along sidewalks are provided.
e.
Use of additional shade trees to create a greater canopy effect.
f.
A greater degree of compatibility with surrounding uses than a standard landscape plan would offer.
g.
Water use is minimized. The estimated total water use (ETWU) of the proposed landscaping on a site shall not exceed the maximum applied water allowance (MAWA) limitations established by the State of California pursuant to the most current adopted California Model Water Efficient Landscape Ordinance.
1.
Variables that may be used in water efficiency calculations.
i.
Landscaped Area (LA). Total landscaped area, expressed in square feet, including all areas dedicated to planting, turf, and water features. The landscape area does not include footprints of building or structures, sidewalks, driveways, parking lots, decks, patios, gravel or stone walks, or other pervious or non-pervious hardscape, and other non-irrigated areas designated for non-development (e.g., open spaces and existing native vegetation). Landscaped area (LA) includes special landscaped areas (SLA).
ii.
Special Landscaped Areas (SLA). Area of landscape, expressed in square feet, dedicated solely to edible plants, areas irrigated with recycled water, water features using recycled water, and areas dedicated to active play such as parks, sports fields, golf courses, and where turf provides a playing surface.
iii.
Plant Factor Adjustment (PFA). The sum of the products of the area in each planting type multiplied by the plant factor according to the California Department of Water Resources study, Water Use Classification of Landscape Species (WUCOLS) for that planting type.
iv.
Irrigation Efficiency (IE). Amount of water beneficially used divided by the amount of water applied.
A landscape plan shall be submitted with the permit application for all projects for which landscaping is required.
(1)
Information required. Landscape plans shall be drawn to scale and shall at a minimum include the following:
a.
Project type (i.e. new residential, new non-residential, rehabilitated, homeowner-installed, etc.).
b.
Total landscape area (square feet) including a breakdown of area dedicated to turf/high water uses, hardscape, and live plant material.
c.
Water supply type (i.e. potable, recycled, well, graywater) and identify water purveyor if not served by private well.
d.
Proposed plant locations, species, sizes, and water use needs (i.e. low, medium, or high as identified on an applicable Yuba County plant list, the California Department of Water Resources study, Water Use Classification of Landscape Species (WUCOLS), or other plant list approved by the Planning Director). All water features shall be identified as high water use and temporarily irrigated areas shall be identified as low water use.
e.
Location of any existing trees over six inches in diameter, and whether each such tree is proposed for retention or removal.
f.
Location and type of any existing and/or proposed paving or hardscape material.
g.
Irrigation plan that at a minimum indicates the location, type and size of all components of the irrigation system and demonstrates compliance with the requirements of this Section.
h.
Any additional proposed landscape elements and any other measures to facilitate plant growth or control erosion.
i.
Provide a statement signed by the preparer of the landscape plan as follows: "I have complied with the landscape criteria of the Yuba County Landscape Ordinance Chapter 11.24.
(2)
Additional information required for projects over 2,500 square feet of aggregate landscape area or alternative landscape plans. In addition to the above information these projects shall include the following information:
a.
Submit a soil management report consistent with the requirements of the current California Model Water Efficient Landscape Ordinance. Production home developments and similar large landscape projects shall conduct a soil sampling rate equivalent to one in seven lots or approximately 15 percent.
b.
The landscape design plan shall also:
1.
Delineate and label each hydrozone by number, letter, or other method;
2.
Identify each hydrozone as low, moderate, high, or mixed water use;
3.
Identify areas designated for recreation, edible plants, or recycled water;
4.
Identify soil amendments, type and quantity;
5.
Identify type of mulch and application depth;
6.
Identify type and surface areas of water features;
7.
Identify hardscape (pervious and non-pervious areas);
8.
Identify any rain harvesting or catchment technologies; Identify any applicable graywater discharge piping, system components and areas of distribution.
(3)
Preparation by qualified person. The landscape and irrigation plans shall be prepared by a qualified Landscape Architect.
All new landscaping shall be irrigated with an irrigation system. The Director may waive this requirement based on plant water needs and site characteristics (i.e. landscape areas that do not require irrigation once established).
(1)
The irrigation system and its related components shall be planned and designed to allow for proper installation, management and maintenance.
(2)
All irrigation systems shall be designed to avoid runoff, low head drainage, overspray, or other similar conditions where water flows onto adjacent property, non-irrigated areas, walks, roadways, or structures.
(3)
Automatic irrigation controllers and sensors are required. Controllers may either be weather-based (rain sensors) or soil moisture-based controllers that automatically adjust irrigation in response to changes in plants' needs as weather conditions change. The controller shall also be of a type which does not lose programming date in the event the primary power source is interrupted.
(4)
Proper irrigation equipment and schedules, including features such as repeat cycles, shall be used to closely match application rates to infiltration rates determined by a soil percolation test, therefore minimizing runoff.
(5)
Low-volume irrigation shall be required in mulched areas, in areas with slope greater than 25 percent, and in any narrow or irregularly shaped areas that are less than eight feet in width in any direction.
(6)
Pressure regulators shall be installed on the irrigation system to ensure the dynamic pressure of the system is within the manufacturers recommended pressure range.
(7)
Overhead irrigation should occur before 10:00 a.m. and after 6:00 p.m. between April 1st and October 1st.
(8)
Recirculating water shall be used for decorative water features.
(9)
All irrigation shall be subject to restrictions put forth by the State, County of Yuba or local water purveyor during periods of drought.
(10)
Areas less than ten feet in width in any direction shall be irrigated with subsurface irrigation or other means that produces no runoff or overspray.
(11)
Irrigation systems shall consist of low-volume emitters (i.e. drip emitters and microspray) or the following:
a.
Low volume rotary type heads, with check valves and pressure regulation for turf areas where turf is allowed);
b.
Sprinkler heads and other emission devices with matched precipitation rates, unless otherwise directed by manufacturer's recommendations; and
c.
Separate valves for each plant hydrozone.
(12)
Landscape water meters, defined as either a dedicated water service meter or private submeter shall be installed for all non-residential irrigated landscapes of 1,000 square feet but no more than 5,000 square feet and all residential irrigated landscapes of 5,000 square feet or greater. A landscape water meter may be either a customer service meter dedicated to landscape use provided by the local water purveyor or a privately owned meter or submeter.
(13)
Landscape and irrigation plans for projects over 2,500 square feet of aggregate landscape area or utilizing an Alternative Landscape Plan shall demonstrate compliance with any additional requirements of Subsection 492.7, Irrigation Design Plan of the California Model Water Efficient Landscape Ordinance.
(a)
Consistency with approved plans. All landscaping shall be installed consistent with approved plans and specifications, in a manner designed to encourage and maintain healthy plant growth.
(b)
Timing of installation. Required landscaping shall be installed prior to the issuance of a Certificate of Occupancy for the project.
(c)
Exception—Assurance of landscaping completion. The Planning Director may permit the required landscaping to be installed within 120 days after the issuance of a Certificate of Occupancy in special circumstances related to weather conditions or plant availability. A surety in the amount of 150 percent of the estimated cost of landscaping, including materials and labor, as well as an agreement that the required landscaping will be installed within 120 days, must be filed with the County along with any applicable processing fee to assure completion of landscaping installation within such time. The surety may take the form of cash deposit, irrevocable letter of credit or bond; and together with the agreement, would provide for payment to the County of any costs incurred in contracting for completion of the required landscaping as well as grant the County or its contractor access to property in event County must install improvements.
(d)
Certification of completion. Upon completion of the installation of the landscaping and irrigation system, a certificate of completion shall be submitted to the County indicating that the plants were installed as specified and that the irrigation system was installed as designed, along with a list of any deficiencies. A final inspection to verify completion may be conducted by the County.
(1)
Production housing projects, projects with over 2,500 square feet of aggregate landscape area or alternative landscape plans shall also include the following as part of the certificate of completion:
a.
The certificate shall be signed by licensed landscape contractor, the signer of the irrigation design plan, or signer of the landscape design plan;
b.
Shall indicate project has been installed per approved plans or where there have been significant changes made in the field during construction, "as built" plans indicating compliance with the County Code shall be included with the certification;
c.
A diagram of the irrigation plan with hydrozones shall be kept with the irrigation controller for subsequent management purposes;
d.
Copy of the irrigation audit report consistent with Section 492.12 of the California Model Water Efficient Landscape Ordinance shall be submitted to the County; and
e.
Statement indicating that the irrigation scheduling and maintenance schedules have been provided to the owner and that a copy of the certificate of completion shall be provided to local water purveyor.
This Section addresses the appropriate long-term care and maintenance of all landscaping provided for commercial, multifamily, industrial, and institutional developments. It is also intended to set provisions for the removal and replacement of unhealthy trees and or hazardous conditions and provide adequate clearance and visibility of merchant signage, when the aesthetics of the tree and shading requirements will not be reduced.
(1)
All required landscaping and irrigation (e.g. sprinklers) shall be maintained and replaced for the life span of the project. Commercial corridors and commercial landscaping maintenance is the responsibility of the Builder/Developer. Landscaping maintenance on residential properties is the responsibility of the property owner.
(2)
All plant materials (trees, shrubs, and groundcovers) shall be maintained free from physical damage or injury arising from vehicle encroachment, lack of water, weather events, chemical damage, insects and other pests, and diseases. Plant materials showing such damage shall be replaced with the same or similar species from the Approved Tree List, Recommended Ground Cover and Shrub List, or shall be approved by the Planning Director. Planting areas shall be kept free from weeds, debris, and undesirable materials which may be detrimental to safety, drainage, or appearance.
(3)
It is the responsibility of the property owners to seek professional advice and spray and treat trees, shrubs, and groundcover for diseases which can be successfully controlled if such untreated diseases are capable of destroying an infected tree or other trees within a project.
(4)
Tree removal shall be limited to trees which are in poor health, structurally distressed, or imminently hazardous to persons or property. The removal of a tree shall be the final recourse upon determining that it is infeasible to save the tree by any other method (e.g., pruning, treatment of diseases, fertilizing). Tress shall be replaced with the same or similar species from the Approved Tree List or shall be approved by the Planning Director.
(5)
Yuba County has the authority to enforce compliance with landscaping care and maintenance.
The purposes of the parking and loading regulations are to:
(1)
Ensure that adequate off-street parking and loading facilities are provided for new land uses and for alterations and enlargements of existing uses.
(2)
Contribute to a balanced transportation system with a choice of transit, bicycle, pedestrian, and private automobile modes.
(3)
Encourage the use of bicycles by providing safe and convenient places to park bicycles.
(4)
Facilitate the development of common parking areas that serve multiple establishments or uses.
(5)
Offer flexible means of minimizing the amount of area devoted to motor vehicle parking by allowing reductions to the number of required spaces for land uses with lower parking demand characteristics and for shared parking facilities serving uses with different peak demand times.
(6)
Provide safe and orderly circulation, loading, unloading, and parking within parking areas, and minimize conflicts between pedestrian and vehicular circulation.
(7)
Ensure that parking and loading facilities are designed with adequate landscaping, screening, and buffering in order to improve and soften their appearance, provide shade, and buffer surrounding land uses from potential impacts.
The requirements of this Chapter apply to the establishment, alteration, expansion, or change of any use or structure, as provided in this Section.
(1)
New buildings and land uses. On-site parking shall be provided according to the provisions of this Chapter at the time any main building or structure is erected or any new land use is established.
(2)
Reconstruction, expansion and change in use of existing non-residential buildings.
a.
Changes in use or expansions of floor area resulting in three or fewer additional parking spaces are exempt from having to provide additional parking so long as all handicap accessible parking requirements are met. All expansions within a five year period shall count towards the cumulative total of three additional parking spaces.
b.
Expansions in use or floor area up to 25 percent but resulting in less than 15 additional parking spaces shall provide for the additional on-site parking or loading spaces pursuant to Table 11.25.040. The existing parking may be maintained, and only the additional parking shall be subject to the requirements of Section 11.25.100, Design Standards for Parking Lots.
c.
Changes in use resulting in four or more additional parking spaces or expansions in use or floor area greater than 25 percent or more than 15 parking spaces shall require both the existing parking and additional parking to meet the standards of Section 11.25.100; Design Standards for Parking Lots. A change in occupancy is not considered a change in use unless the new occupant is in a different use classification than the former occupant.
(3)
Alterations that increase the number of dwelling units. The creation of additional dwelling units through the alteration of an existing building or construction of an additional structure or structures requires the provision of on-site parking to serve the new dwelling units. This requirement does not apply when sufficient on-site parking exists to provide the number of spaces required for both the existing and new dwelling units.
(4)
Bicycle parking. Bicycle parking shall be required pursuant to Section 11.25.080, Bicycle Parking.
(5)
When constructed. On-site parking facilities including bicycle parking required by this Chapter shall be constructed or installed prior to the issuance of a Certificate of Occupancy for the uses that they serve.
(a)
Existing parking and loading to be maintained. No existing parking or loading serving any use may be reduced in amount or changed in design, location or maintenance below the requirements for such use, unless equivalent substitute parking or loading facilities are provided and approved by the Planning Director.
(b)
Use of required parking spaces. Required off-street parking areas shall be used exclusively for the temporary parking of vehicles and shall not be used for the sale, lease, display, repair, or storage of vehicles, trailers, boats, campers, mobile homes, merchandise, or equipment, or for any other use, unless specifically authorized by another provision of this Code.
(c)
Non-conforming parking or loading. An existing use of land or structure shall not be deemed to be non-conforming solely because of a lack of parking or loading facilities required by this Chapter, provided that facilities used for parking and loading as of the date of adoption of this Code are not reduced in number to less than that required by this Chapter.
(d)
Accessibility. Parking must be accessible for its intended purpose during all business hours.
(e)
Maintenance of required parking spaces. No garage, carport, or other designated parking area may be converted to another use unless the converted parking spaces are replaced with on-site parking that meets all requirements of this Chapter.
Off-street motor vehicle parking shall be provided according to the ratios prescribed in Table 11.25.040, Required Off-Street Parking Spaces, and according to the following provisions for calculation of required spaces:
(1)
Calculation of required spaces. The number of required parking spaces shall be calculated according to the following rules:
a.
Fractions. If the calculation of required parking or loading spaces results in the requirement of a fractional space, such fraction, if one-half or greater, shall be considered one additional space; if the fraction is less than one-half, it shall result in no additional required spaces.
b.
Gross floor area. Where an on-site parking or loading requirement is stated as a ratio of parking spaces to area, the area is assumed to be gross floor area (which includes interior walls) unless otherwise stated.
c.
Employees. Where an on-site parking or loading requirement is stated as a ratio of parking spaces to employees, the number of employees shall be based on the largest shift that occurs in a typical week.
d.
Bedrooms. Where an on-site parking requirement is stated as a ratio of parking spaces to bedrooms, any rooms having the potential of being a bedroom and meeting the standards of the California Building Code as a sleeping room shall be counted as a bedroom.
e.
Students or clients. Where a parking or loading requirement is stated as a ratio of parking spaces to students (including children in day care), the number is assumed to be the number of students or clients at the State-certified capacity, or at Building Code Occupancy where no State certification is required.
f.
Seats. Where parking requirements are stated as a ratio of parking spaces to fixed seats, each 24 inches of bench-type seating at maximum seating capacity is counted as one seat.
(2)
Sites with multiple uses. If more than one use is located on a site, the number of required off-street parking spaces shall be equal to the sum of the requirements calculated separately for each use unless a reduction for shared parking is approved pursuant to Subsection 11.25.050(C), Shared Parking.
(3)
Uses not specified. The parking requirement for any use not listed in Table 11.25.040, the Zoning Administrator shall establish the parking requirement based on the particular characteristics of the proposed use, and any other relevant data regarding parking demand. The Zoning Administrator may require the applicant to submit parking studies or any other information needed to assess parking demand for the proposed project. Where a conditional use permit or minor use permit is required for the use, the decision-making authority shall establish the parking requirement based on the parking study and other information in the record as part of the review process.
(4)
Minimum number of required spaces. For each land use, applicant shall be provided at least the number of off-street motor vehicle parking spaces stated in Table 11.25.040, Required Off-Street Parking Spaces.
(5)
Specific plan, area plan, and/or community plan provisions. A specific plan, area plan, or community plan may establish parking requirements based upon the characteristics of the area covered by the plan.
(a)
Motorcycle and scooter parking. For any nonresidential use providing 20 or more off-street spaces, a maximum of two required off-street parking spaces per 20 vehicle spaces may be reduced in size or otherwise redesigned to accommodate parking for motorcycles and scooters. When provided, motorcycle and scooter parking must be identified by a sign. Motorcycle and scooter parking shall be counted concurrently as part of the minimum number of spaces required for the development.
(b)
Credit for on-street spaces. On-street parking spaces located immediately adjacent to the frontage of properties in the NMX, DC, and CMX districts may be counted toward required off-street parking for non-residential uses. One on-street parking space may be substituted for each required off-street space. These provisions only apply to street frontages where on-street parking is allowed.
(c)
Shared parking. Where a shared parking facility serving more than one use will be provided, the total number of required parking spaces may be reduced (from the number that would be required if each use provided parking separately) with approval of a waiver.
(1)
Findings for approval. In order to approve a reduction in the total number of spaces for a shared parking facility, the decision making authority must find that:
a.
The proposed shared parking to be provided will be adequate to serve each use;
b.
The peak hours of use will not overlap or coincide to the degree that peak demand for parking spaces from all uses will be greater than the total supply of spaces;
c.
Parking demand generated by the project will not exceed the capacity of or have a detrimental impact on the supply of on-street parking in the surrounding area;
d.
If required, a parking demand study prepared by an independent traffic engineering professional approved by the County supports the proposed reduction; and
e.
If a shared parking facility will serve more than one property, a parking agreement has been prepared consistent with the provisions of Subsection 11.25.070(C), Off-Site Parking Facilities.
(2)
Conditions for approval. The decision-making authority may require additional documents, covenants, deed restrictions, or other agreements as it deems necessary to ensure that the required parking spaces provided are maintained and uses with similar hours and parking requirements as those uses sharing the parking facilities remain for the life of the project.
(d)
Other parking reductions. Required parking for any use may be reduced through approval of a waiver.
(1)
Findings for approval. The decision-making authority may only approve a parking reduction if it finds that:
a.
Special conditions—including but not limited to the nature of the proposed operation; proximity to frequent transit service; transportation characteristics of persons residing, working, or visiting the site; or because the applicant has undertaken a transportation demand management program—exist that will reduce parking demand at the site below the level of the normal requirement;
b.
The use will adequately be served by the proposed on-site parking;
c.
Parking demand generated by the project will not exceed the capacity of or have a detrimental impact on the supply of on-street parking in the surrounding area; and
d.
If required, a parking demand study prepared by an independent traffic engineering professional approved by the County supports the proposed reduction.
(e)
Parking demand study. In order for the decision-making authority to evaluate a project's compliance with the required findings for approval, the Planning Director may require submission of a parking demand study prepared by an independent traffic engineering professional approved by the County that substantiates the basis for granting a reduction in required parking spaces.
(f)
Monitoring of TDM programs. Any project that is granted a parking reduction on the basis of transportation demand management (TDM) measures that will be incorporated to reduce parking demand shall submit an annual status report to the County. The report shall be in a manner prescribed by the Planning Director, and shall describe the implementation and maintenance of TDM measures and the parking demand generated by the project. Annual status reports will be reviewed to determine if property owners have implemented and/or maintained the TDM Program. County staff may request auditable documentation to determine compliance.
If a parking assessment district has been established, a fee may be paid to the County in lieu of providing required parking within the district.
(1)
In-lieu fee amount. The amount of the in-lieu fee shall be calculated and paid as set forth in a resolution of the Board of Supervisors.
(2)
Use of funds. In-lieu fees shall be used for programs to reduce parking impacts including, but not limited to, the costs of any of the following:
a.
Off-street parking facilities, including acquisition, development, and maintenance of parking facilities located in the parking assessment district;
b.
Mass transit equipment, including stock and attendant facilities serving the area in which the buildings for which the payments are made are located;
c.
Transit or paratransit passes, coupons, and tickets to be made available at a discount to employees and customers and to promote and support incentives for employee ride-sharing and transit use; or
d.
Transportation system management projects.
(a)
Residential uses. Required parking for residential uses shall be located on the same lot as the dwelling served, or in an off-site parking facility as provided in Subsection (c).
(b)
Nonresidential uses. Required parking spaces serving non-residential uses shall be located on the same lot as the use they serve, or in an off-site parking facility as provided in Subsection (c).
(c)
Off-Site parking facilities. A parking facility serving one or more uses may be located on a site other than the site of one or more such use(s) if a Minor Use Permit is approved and the standards of this Subsection are met.
(1)
Location. Any off-site parking facility must be located within 400 feet—or in the case of a residential use, within 100 feet—along an accessible walkway, of the principal entrance containing the use(s) for which the parking is required.
(2)
Parking agreement. A written parking agreement shall be submitted with the application for an off-site parking facility. The agreement shall be subject to review and approval by the County Counsel and shall subsequently be recorded in the County Recorder's Office. The parking agreement shall include the following.
a.
A guarantee among the landowner for access to and use of the parking facility; and
b.
A guarantee that the spaces to be provided will be maintained and reserved for the uses served for as long as such uses are in operation.
Within the valley growth boundary, parking for bicycles shall be provided according to the standards of this Section in conjunction with the establishment of any new land use or building, as well as in conjunction with any change in use, alteration, or expansion.
(1)
Short-term bicycle parking. Short-term bicycle parking shall be provided in order to serve shoppers, customers, messengers, guests and other visitors to a site who generally stay for a short time.
a.
Parking spaces required. For the following uses, a minimum of one bicycle space shall be provided for every ten automobile spaces for the first 200 automobile parking spaces required, and one bicycle parking space shall be required for every 100 automobile spaces over the first 200 automobile parking spaces required. A minimum of two bicycle parking spaces shall be required per establishment:
1.
Multi-unit residential and single room occupancy uses with four or more units. Outdoor bicycle parking requirements may be reduced by 50 percent for projects that provide at least one enclosed private garage space per dwelling unit.
2.
Boarding facilities and agricultural labor housing with four or more separately rentable beds, bedrooms, or units.
3.
All public and semi-public uses except cemetery.
4.
All commercial uses except kennels, food preparation, vehicle sales and services, and lodging.
5.
Transportation passenger terminals.
b.
Bike parking plan for large entertainment and recreation facilities. Outdoor motor vehicle racing facilities, amphitheaters, entertainment facilities, or equestrian and rodeo facilities having an occupancy capacity in excess of 5,000 persons shall submit a proposed bicycle parking plan in conjunction with the required automobile parking plan for approval by the decision-making authority.
c.
Location. Short-term bicycle parking must be located outside of the public right-of-way and pedestrian walkways and within 50 feet of a main entrance to the building or use it serves.
1.
Shopping centers. In a shopping center, bicycle parking must be located within 50 feet of an entrance to each anchor store. Bicycle parking shall be visible from the street or from the main building entrance, or a sign must be posted at the main building entrance indicating the location of the parking.
2.
Mixed-use districts. Bicycle parking for establishments that abut the public sidewalk and are located in the CMX, DC, or NMX districts may be located within the public right-of-way, provided that an unobstructed sidewalk clearance of six feet is maintained for pedestrians at all times.
d.
Anchoring and security. For each short-term bicycle parking space required, a stationary, securely anchored object shall be provided to which a bicycle frame and at least one wheel can be secured with a high-security U-shaped shackle lock if both wheels are left on the bicycle. One such object may serve multiple bicycle parking spaces.
e.
Size and accessibility. Each short-term bicycle parking space shall be a minimum of two feet in width and six feet in length and shall be accessible without moving another bicycle. Two feet of clearance shall be provided between bicycle parking spaces and adjacent walls, poles, landscaping, street furniture, drive aisles, and pedestrian ways; at least five feet of clearance shall be provided from automobile parking spaces.
Figure 11.25.080: Short-Term Bicycle Parking
(2)
Long-term bicycle parking. Long-term bicycle parking shall be provided in order to serve employees, students, residents, commuters, and other persons who generally stay at a site for four hours or longer.
a.
Parking spaces required. Long-term bicycle parking spaces shall be provided at the following ratios.
1.
Nonresidential uses. Any individual establishment with 50 or more employees shall provide long-term bicycle parking at a minimum ratio of one bicycle space per 100 automobile spaces.
2.
Parking structures. Long-term bicycle parking shall be provided at a minimum ratio of one space per 50 vehicle spaces.
b.
Location. Long-term bicycle parking must be located on the same lot as the use it serves. In parking garages, long-term bicycle parking must be located near an entrance to the facility.
c.
Security. Long-term bicycle parking must be in:
1.
An enclosed bicycle locker;
2.
A fenced, covered, locked or guarded bicycle storage area; or
3.
A rack or stand inside a building that is within view of an attendant or security guard or visible from employee work areas.
d.
Size and accessibility. Each bicycle parking space shall be a minimum of two feet in width and six feet in length and shall be accessible without moving another bicycle. Two feet of clearance shall be provided between bicycle parking spaces and adjacent walls, poles, landscaping, street furniture, drive aisles, and pedestrian ways and at least five feet from vehicle parking spaces.
(a)
Loading spaces required. Off street loading facilities shall be provided with all commercial and industrial development.
(b)
Location. No loading facilities for vehicles over two-ton capacity shall be closer than 50 feet to any property in a residential district unless completely enclosed by building walls, or a uniformly solid fence or wall, or any combination thereof, not less than six feet in height.
(c)
Maneuvering areas. Truck-maneuvering areas shall not encroach into required parking areas, travel ways, or street rights-of-way. This requirement may be modified if the Zoning Administrator finds that sufficient space is provided so that truck-maneuvering areas will not interfere with traffic and pedestrian circulation.
(d)
Surfacing. The loading area, aisles, and access drives shall be surfaced with asphaltic concrete of minimum thickness of two inches on six inches of Class II aggregate rock base.
Parking areas shall be designed and developed consistent with the following standards:
(1)
Parking areas outside the valley growth boundary.
a.
Parking associated with a single family residence, or caretaker unit. Parking spaces shall be located outside of any required setback and shall at a minimum be graded and improved with gravel.
b.
Parking associated with an accessory dwelling unit. Off-street parking for accessory dwelling units may be a tandem space in a driveway or off-street within setback areas provided in locations approved by the County. Tandem parking and the location of off-street parking within setback areas shall be approved by the County unless specific findings can be and are made that parking in setback areas or tandem parking is not feasible based on specific site or regional topographical or fire and life safety conditions.
c.
Projects that require ten or more parking spaces. Parking areas located outside the valley growth boundary that require ten or more parking spaces may request as part of project approval a reduction in the number of spaces that need to be paved and designed per the requirements listed in Section 11.25.100(2). The request shall be submitted with the initial project application and shall clearly identify the number of unpaved spaces being requested along with any other requested deviations to the standards listed in Section 11.25.100(2). All unpaved spaces shall meet the following standards:
1.
Surfacing. Must be graded and improved with gravel.
2.
Dust control. All unpaved parking areas must have an active dust control program.
3.
Parking space dimensions. The minimum dimension for a parking space is nine feet by 18 feet.
(2)
Other parking areas. All parking areas not addressed by Section 11.25.100(1) shall be designed and developed consistent with the following standards.
a.
Surfacing. Concrete or asphaltic surfacing of two inch minimum thickness on a four inch Class II aggregate rock base for residential uses, on a six inch Class II aggregate rock base for nonresidential uses.
b.
Drainage and stormwater control. All parking areas shall be properly drained, consistent with the Yuba County Stormwater Quality Ordinance (Chapter 7.50, Stormwater Quality, of the County Code), Grading, Drainage and Erosion Control Ordinance (Chapter 11.23 of County Code), the requirements of the California State Water Resources Board's General Permit for Small MS4s, and subject to the approval of the Director of Public Works.
c.
Parking space dimensions.
1.
Standard parking spaces. The minimum dimension for standard parking spaces is nine feet by 18 feet.
2.
Compact parking spaces. When 20 or more parking spaces are required, up to 30 percent of the total number of required spaces may be reduced in size to 16 feet in length and eight feet in width for the accommodation of compact cars. Such compact spaces shall be clearly indicated by appropriate markings and signage. Compact spaces should be dispersed through the parking lot.
Figure 11.25.100(2)c.: Parking Space Dimensions
d.
Parking access, forward entry. Parking areas of four or more spaces shall be provided with suitable maneuvering room so that all vehicles therein may enter an abutting street in a forward direction.
e.
Tandem parking. Tandem parking may be permitted to satisfy the off-street parking requirement for a residential unit in accordance with the following:
1.
Parking spaces for the primary residence shall be located outside any required setback area.
2.
No more than two vehicles shall be placed one behind the other.
3.
Both spaces shall be assigned to a single dwelling unit.
f.
On-site circulation, safety, and pedestrian access. Parking areas for commercial and mixed-use developments that are 80 feet or more in depth and/or include 50 or more parking spaces must have distinct and dedicated pedestrian access from the commercial use to parking areas and public sidewalks, according to the building code and following standards:
1.
Connection to public sidewalk. An on-site walkway shall connect the main building entry to a public sidewalk on each street frontage. Such walkway shall be the shortest practical distance between the main building entry and sidewalk, generally no more than 125 percent of the straight-line distance unless grade controlled.
2.
Materials and width. Walkways shall provide at least four feet of unobstructed width and be hard-surfaced with an accessible material.
3.
Identification. Pedestrian walkways shall be clearly differentiated from driveways, parking aisles, and parking and loading spaces through the use of elevation changes, a different paving material, truncated domes, or similar method.
4.
Separation. Where a pedestrian walkway is parallel and adjacent to an auto travel lane, it must be raised and separated from the auto travel lane by a raised curb, bollards, truncated dome, or other physical barrier.
g.
Parking lot striping. Parking stalls shall be clearly outlined with striping, and all aisles, approach lanes, and turning areas shall be clearly marked with directional arrows and lines as necessary to provide for safe traffic movement.
h.
Wheel stops. Concrete bumper guards or wheel stops shall be provided. A six-inch high concrete curb surrounding a landscape area at least six feet wide may be used as a wheel stop, provided that the overhang will not damage or interfere with plant growth or its irrigation. A concrete sidewalk may be used as a wheel stop if the overhang will not reduce the minimum required walkway width.
i.
Perimeter curbing. A six-inch wide and six-inch high concrete curb shall be provided along the outer edge of the parking facility pavement, except where said pavement abuts a fence or wall. Curbs separating landscaped areas from parking areas shall be designed to allow stormwater runoff to pass through where feasible.
Figure 11.25.100(2)i.: Parking Lot Perimeter Curbing
j.
Lighting. Public parking areas shall be provided with a minimum of one-half foot-candle and a maximum of 3.0 foot-candles of light over of the parking surface during the hours of use from one-half hour before dusk until one-half hour after dawn.
1.
Lighting design shall be coordinated with the landscape plan to ensure that vegetation growth will not substantially impair the intended illumination.
2.
Parking lot lighting shall, to the maximum extent feasible, be designed and installed so that light and glare is not directed onto residential use areas or adjacent public rights-of-way, consistent with Chapter 11.26, Performance Standards.
k.
Separation from on-site buildings. Parking areas must be separated from the front walls of on-site buildings by walkways a minimum of six feet in width. These requirements do not apply to parking areas containing five or fewer spaces.
Figure 11.25.100(2)k.: Parking Lot Design—Seperation from On-Site Buildings
l.
Screening. Parking areas shall be screened from view from public streets according to the following standards:
1.
Height. Screening of parking lots from adjacent public streets shall be three feet in height.
2.
Materials. Screening may consist of one or any combination of the methods listed below:
i.
Walls. Low-profile walls consisting of brick, stone, stucco, or other quality durable material approved by the Planning Director, and including a decorative cap or top finish as well as edge detail at wall ends. Plain concrete blocks are not allowed as a screening wall material unless capped and finished with stucco or other material approved by the Planning Director.
ii.
Fences. An open fence of wrought iron or similar material combined with plant materials to form an opaque screen. This option does not include the use of chain-link or vinyl fencing.
iii.
Planting. Plant materials consisting of compact evergreen plants that form an opaque screen. Such plant materials must achieve a minimum height of two feet within 18 months after initial installation.
iv.
Berms. Berms planted with grass, ground cover, or other low-growing plant materials.
Figure 11.25.100(2)l.: Parking Lot Screening
m.
Parking lot landscaping. Landscaping of parking areas shall be provided and maintained according to the general standards of Chapter 11.24, Landscape, as well as the standards of this Subsection. Planter widths are minimums, wider widths may be necessary to accommodate larger tree or plant species. All widths listed are interior widths. Smaller widths may be approved along perimeter areas if curb stops or concrete barriers are provided that prevent vehicles from overhanging into the planter or pedestrian walkway.
1.
Landscape area required. A minimum of ten percent of any parking lot area shall be landscaped.
2.
Layout. Landscaped areas shall be well-distributed throughout the parking lot area. Parking lot landscaping may be provided in any combination of:
i.
Landscaped planting strips at least five feet wide between rows of parking stalls. Areas planted with trees shall be at least six feet wide;
ii.
Orchard planters at least six feet wide;
iii.
Landscaped planting strips at least six feet wide (between parking areas and adjacent buildings or internal pedestrian walkways);
iv.
Landscaped islands located between parking stalls or at the ends of rows of parking stalls; and
v.
On-site landscaping at the parking lot perimeter that is at least five feet in width.
3.
Required landscaped islands. A landscaped island or orchard planter at least six feet in all interior dimensions and containing at least one tree from the Approved Tree List shall be provided at each end of each interior row of parking stalls and staggered throughout the parking field to obtain the minimum shade requirement. Unless an alternative plan is approved for parking areas utilizing solar/shade structures.
4.
Landscaped buffer for open parking adjacent to right-of-way. A landscaped area at least ten feet wide shall be provided between any surface parking area and any property line adjacent to a public street unless a lesser dimension is approved through the Design Review permit where due to site constraints or consistency with community character a smaller buffer is approved. Within the landscaped area, there shall be at least one tree planted from the Approved Tree List for each 40 feet of street frontage.
5.
Shading. Shade trees or shade structures shall provide a minimum 50 percent shading (at maturity, where trees are used).
Figure 11.25.100(2)m.5.: Parking Lot Landscaping
6.
Protection of vegetation.
i.
Clearance from vehicles. All required landscaped areas shall be designed so that plant materials, at maturity, are protected from vehicle damage by providing a minimum two-foot clearance of low-growing plants where a vehicle overhang is permitted, or by wheel stops set a minimum of two feet from the back of the curb.
ii.
Planters. All required parking lot landscaping shall be within planters bounded by a concrete curb at least six inches wide and six inches high. Curbs separating landscaped areas from parking areas shall be designed to allow stormwater runoff to pass through if feasible.
Figure 11.25.100(2)m.6.: Protection of Vegetation
7.
Visibility and clearance. Landscaping in planters at the end of parking aisles may not obstruct drivers' vision of vehicular and pedestrian cross-traffic. Mature trees shall have a foliage clearance maintained at eight feet from the surface of the parking area. Other plant materials located in the interior of a parking lot should not exceed 30 inches in height.
(3)
Alternative parking area designs.
a.
S/E district. In the S/E District, the Planning Commission may approve parking facility plans that allow for alternative standards for off-street parking facilities due to the intermittent nature of the events and variations in attendance. Proposals which include standards less than the required stall size and driving aisle shall include provisions for management of the facility by parking ushers. Proposals for alternative surfacing shall be based upon estimates for frequency of events and estimated average attendance per event and shall at the minimum provide for a low-traffic paving system for the estimated average number of vehicles. The remainder of the parking area shall, at the minimum, be seeded with a hardy, drought-resistant grass to provide a dust-controlling surface and shall be maintained to prevent ignition from parked vehicles.
b.
Other districts. Where an applicant can demonstrate to the satisfaction of the Zoning Administrator that variations in the dimensions otherwise required by this Section are warranted in order to achieve environmental design objectives, an alternative parking area design may be approved.
(4)
Maintenance. Parking lots, including landscaped areas, driveways, and loading areas, shall be maintained free of refuse, debris, or other accumulated matter and shall be kept in good repair at all times.
Temporary, overflow parking may be utilized for special events and other temporary uses that are allowed by this Code. All temporary parking shall meet local fire department requirements Where a temporary use permit or other permit is required, the applicant shall demonstrate to the decision-making authority the ability to provide safe access and parking, including access road clearance for emergency vehicles, a dust control program, and the provision of attendants, if necessary to monitor proper parking and access road clearance for emergency vehicles.
Recreational vehicles, including travel trailers and boats, may not be parked or stored in a required front yard or street side setback area (excluding driveways). Recreational vehicles may be parked or stored in a driveway, side yard, or rear yard. Other regulations pertaining to recreational vehicles include:
(1)
Parking within the public right-of-way shall only be for the purpose of loading or unloading, not to exceed 72 hours before or after a trip. The recreational vehicle may be used for purposes of accommodating visitors, not to exceed one week within any consecutive six-month period and shall be fully self-contained and shall not be parked within a public right-of-way or have any power cords or other items transversing the public right-of-way.
The purposes of this Chapter are to:
(1)
Establish permissible limits and permit objective measurement of nuisances, hazards, and objectionable conditions;
(2)
Ensure that all uses will provide necessary control measures to protect the community from nuisances, hazards, and objectionable conditions;
(3)
Protect industry from arbitrary exclusion from areas of the County; and
(4)
Protect and sustain the natural environment by promoting conservation of energy and natural resources, improving waste stream management, and reducing emission of greenhouse gases.
The minimum requirements in this Section apply to all land uses in all zoning districts, unless otherwise specified.
Land or buildings shall not be used or occupied in a manner creating any dangerous, injurious, or noxious fire, explosive or other hazards that would adversely affect the surrounding area.
Measurements necessary for determining compliance with the standards of this Chapter shall be taken at the property line of the establishment or use that is the source of a potentially objectionable condition, hazard, or nuisance unless another location is specific in this Chapter or within the General Plan. Property owners shall be responsible for demonstrating compliance with standards.
(a)
Noise limits. No use or activity shall create ambient noise levels that exceed the standards established in the Public Health and Safety Element of the Yuba County General Plan.
(b)
Acoustic study. The Planning Director may require an acoustic study for any proposed project that could cause any of the following:
(1)
Locate new residential uses within the 55 Community Noise Equivalent (CNEL) impact area of the Yuba County Airport;
(2)
Locate new residential uses within the 55 CNEL impact area of Beale Air Force Base (excludes housing located on Base);
(3)
Cause noise levels to exceed the limits in Chapter 8.20, Noise Regulations, of the Yuba County Code and Yuba County General Plan;
(4)
Create a noise exposure that would require an acoustic study and noise attenuation measures listed in the Public Health and Safety Element of the General Plan; or
(5)
Cause the day-night equivalent (LDN) noise level at noise-sensitive uses to increase five dB or more.
(c)
Noise attenuation measures. Any project subject to the acoustic study requirements of Subsection (b) may be required as a condition of approval to incorporate noise attenuation measures deemed necessary to ensure that noise standards are not exceeded.
(1)
New noise-sensitive uses (e.g. schools, hospitals, churches, and residences) shall incorporate noise attenuation measures to achieve and maintain an interior noise level of 45 LDN.
(2)
Noise attenuation measures identified in an acoustic study shall be incorporated into the project to reduce noise impacts to satisfactory levels.
(3)
Emphasis shall be placed upon site planning and project design measures. The use of noise barriers shall be considered only after all feasible design-related noise measures have been incorporated into the project.
No vibration shall be produced that is transmitted through the ground and is discernible without the aid of instruments by a reasonable person at the property lines of the site. Vibrations from temporary construction, demolition, and vehicles that enter and leave the subject parcel (e.g., construction equipment, trains, trucks, etc.) are exempt from this standard.
(1)
New developments that propose vibration sensitive uses within 100 feet of a railroad or industrial facility shall analyze and mitigate potential vibration impacts to the greatest extent feasible.
(2)
New developments that would generate substantial long-term vibration shall provide analysis and mitigation to achieve velocity levels of less than 78 vibration decibels as experienced at habitable structures of vibration-sensitive land uses.
Activities, processes, and uses shall be operated in compliance with the following provisions:
(1)
Mechanical or chemical processes. Light or glare from mechanical or chemical processes, high-temperature processes such as combustion or welding, or from reflective materials on buildings used or stored on a site, shall be shielded or modified to prevent emission of adverse light or glare onto other properties.
(2)
Lighting. Lights shall be placed to deflect light away from adjacent properties and public streets, and to prevent adverse interference with the normal operation or enjoyment of surrounding properties. Direct or sky-reflected glare from floodlights shall not be directed into any other property or street. Except for public street lights, no light or combination of lights, or activity shall cast light on a public street exceeding one foot-candle as measured from the centerline of the street. No light, combination of lights, or activity shall cast light onto a residentially zoned property, or any property containing residential uses, exceeding one-half foot-candle.
(3)
Glare. No use shall be operated such that significant, direct glare, incidental to the operation of the use is visible beyond the boundaries of the lot where the use is located.
No use, process, or activity shall produce objectionable odors that are perceptible without instruments by a reasonable person at the property lines of a site. Odors from permitted agricultural operations, temporary construction, demolition, and vehicles that enter and leave the subject parcel (e.g., construction equipment, trains, trucks, etc.) are exempt from this standard.
Uses, activities, and processes shall not produce any emissions of heat or humidity that cause distress, physical discomfort, or injury to a reasonable person, or interfere with ability to perform work tasks or conduct other customary activities. In no case shall heat emitted by a use cause a temperature increase in excess of five degrees Fahrenheit on another property.
Uses, activities, and processes shall not operate in a manner that emits excessive dust, fumes, smoke, or particulate matter. Sources of air pollution shall comply with rules identified by the Environmental Protection Agency (Code of Federal Regulations, Title 40), the California Air Resources Board, and the Feather River Air Quality Management District.
(a)
Discharges to water or sewers. Liquids and solids of any kind shall not be discharged, whether directly or indirectly, into a public or private body of water, sewage system, storm water system, watercourse, or into the ground, except in compliance with applicable regulations of the California Regional Water Quality Control Board (California Administrative Code, Title 23, Chapter 3 and California Water Code, Division).
(b)
Solid wastes. Solid wastes shall be handled and stored so as to prevent nuisances, health, safety and fire hazards, and to facilitate recycling. There shall be no accumulation outdoors of solid wastes conducive to the breeding of rodents or insects, unless stored in closed containers.
All activities, processes and uses involving the use of, or storage of, flammable and explosive materials shall be provided with adequate safety devices against the hazard of fire and explosion. Fire fighting and fire suppression equipment and devices standard in industry shall be approved by local fire district. With the exception of waste allowed by the fire authority and Air Quality Management District, all incineration is prohibited with the exception of those substances such as, but not limited to, chemicals, insecticides, hospital materials and waste products, required by law to be disposed of by burning, and those instances wherein the fire authority deems it a practical necessity.
The use, handling, storage and transportation of hazardous and extremely hazardous materials shall comply with the provisions of the California Hazardous Materials Regulations and the California Fire and Building Code, as well as the laws and regulations of the California Department of Toxic Substances Control and the County Environmental Health Agency. Activities, processes, and uses shall not generate or emit any fissionable or radioactive materials into the atmosphere, a sewage system or onto the ground.
No use, activity or process shall cause electromagnetic interference with normal radio and television reception in any Residential district, or with the function of other electronic equipment beyond the lot line of the site in which it is situated. All uses, activities and processes shall comply with applicable Federal Communications Commission regulations.
No radiation of any kind shall be emitted that is dangerous to humans.
The purpose of this Chapter is to establish regulations for the design, construction, location, and maintenance of signs that balance the need of residents, businesses, visitors, and institutions for adequate identification, communication, and advertising with the objectives of protecting public health, safety, and general welfare and promoting a well-maintained and visually attractive community, consistent with state and federal law. Specifically, these regulations are intended to:
(1)
Promote and aid in the identification, location, and advertisement of goods and services.
(2)
Enhance the County's ability to attract sources of economic development and growth.
(3)
Promote an attractive, positive image and protect the County from visual clutter and blight.
(4)
Protect property values and enhance community appearance by ensuring that signs are compatible with the character of surrounding architecture, districts, and neighborhoods.
(5)
Reduce or eliminate traffic and safety hazards through proper location and design.
(6)
Ensure that the constitutionally guaranteed right of free speech is protected.
(7)
Provide for eventual elimination of preexisting non-conforming signs on a fair and equitable basis.
The provisions set forth in this Chapter apply in all zoning districts of the County, except where expressly stated otherwise. No sign shall be erected or maintained anywhere in the County except in conformity with this Chapter.
The following signs or modifications to signs do not require a Zoning Clearance or other review by the Planning Department, nor shall the area of such signs be included in the maximum allowable sign area measurement for the purposes of this Chapter. These exceptions shall not be construed as relieving the owner of the sign from the responsibility of the safe erection and safe and attractive maintenance of the sign, of obtaining a building permit where applicable, or of compliance with applicable provisions of this Chapter or any other requirement of this Code.
(1)
Address signs. Required address identification signs that are in conformance with the Building Code.
(2)
Barber poles. Barber poles not exceeding six feet in height, located wholly on commercial private property, and bearing no lettering.
(3)
Building directory sign. A sign on which the names and locations of occupants or the use of a building is provided, oriented to pedestrian traffic and not exceeding six square feet in area.
(4)
Bulletin boards. One bulletin board not exceeding 20 square feet in area or five feet above existing grade, serving a public, or semi-public agency, community facility or institution, if located on the premises of the institution.
(5)
Change-of-business signs. A temporary attachment or covering of wood, plastic, or canvas over a permanent sign indicating a change of ownership or activity for a nonresidential use may be displayed for no longer than 30 days following the change of ownership or activity for which the sign is intended. The sign shall be no larger than the previously permitted permanent sign.
(6)
Commemorative signs. Commemorative plaques, memorial signs or tablets, or signs indicating names of buildings and dates of building erection, either attached to or cut into the surfaces of buildings, provided that no such sign exceeds three square feet in area.
(7)
Construction signs. A temporary construction sign may be erected on a construction site for the duration of construction activities, provided that it is immediately removed after issuance of a certificate of occupancy or certificate of completion for the project, or abandonment of work. A temporary construction sign may not exceed 32 square feet in area and eight feet above finished grade in non-residential districts or eight square feet in area and five feet above finished grade in residential districts.
(8)
Decorative holiday displays. Non-commercial decorative holiday displays, provided that such displays are removed within 45 days of their installation.
(9)
Election signs. Election signs that meet the requirements as set forth by the Elections Office and Community Development and Services Agency.
(10)
Flags. Official flags, emblems and historical markers. This exemption does not apply to flags or pennants bearing corporate emblems, logos or commercial copy.
(11)
Home occupation signs. Permitted home occupations are allowed one wall sign not to exceed four square feet in area and six feet in height.
(12)
Informational signs. Non-commercial informational signs not exceeding two square feet in area erected for the safety and convenience of the public, such as signs identifying rest rooms or telephones, "no parking" and "no trespassing" signs.
(13)
Equipment signs. Signs not more than four square feet in area and incorporated into machinery or equipment by a manufacturer, distributor or vendor and identifying or advertising only the product or service dispensed by the machine or equipment, such as signs customarily fixed to automated teller machines (ATMs), gasoline pumps, and vending machines.
(14)
Interior signs. Signs that are located in interior areas of a building or site and are not visible from public streets or adjacent properties. For the purpose of this regulation, "visible" means legible to a person of ordinary eyesight (with vision adequate to pass a state driver's license exam) standing at ground level at a location on the public right-of-way or other private property.
(15)
Kiosk and mobile vendor signs. Signs fixed to mobile vending carts that identify or advertise the name, product, or service provided by the vendor. Each mobile vending cart is limited to a maximum sign area of eight square feet.
(16)
Newspaper stands. Signs that are part of newspaper stands, provided the sign area does not exceed six square feet.
(17)
Official government signs. Official notices issued by a court, public body or office; official notices posted by a utility or other quasi-public agency; signs erected by a governmental body to direct or regulate pedestrian or vehicular traffic; public hearing or meeting notices; seismic warning signs, or other signs required or authorized by law.
(18)
Public service and civic identity signs. Signs erected on public or private property to promote County-sponsored activities or other community events, as authorized by the Community Development and Services Agency. Signs may include district identification banners; temporary signs or when authorized by the Department of Public Works banners erected above streets or attached to lamp posts or utility poles.
(19)
Real estate signs.
a.
On-site real estate signs. On-premises signs conveying information about the sale, rental, or lease of the lot, premises, dwelling, or structure on which they are located, provided that they comply with the following standards:
1.
No more than one real estate sign for lots in residential districts, or one real estate sign per public street frontage per lot in non-residential districts, is displayed at any one time;
2.
The sign or signs do not exceed an aggregate area of six square feet in residential districts or 32 square feet in non-residential districts;
3.
Wall signs shall not be higher than seven feet above grade in residential districts or fifteen feet in non-residential districts. Freestanding signs shall not exceed five feet in height in residential districts or ten feet in height in non-residential districts.
4.
The sign or signs are not illuminated;
5.
The sign or signs shall not be placed on roof tops or above parapet or eave lines;
6.
The sign or signs are removed within seven days after the sale, lease, or rental of the property has been completed; and
7.
Real estate signs are not permitted in the public right-of-way, and must not obstruct pedestrian walkways or motorists' line of sight, including line-of-sight for those exiting driveways.
b.
Directional signs for open houses. Up to three off-site signs directing the public to "open house" events for the viewing of lots, premises, dwellings or structures that are for sale, lease, or rent, are permitted on public or private land, provided that they comply with the following standards:
1.
No sign or signs shall exceed four square feet in area, or three feet in height from finished grade.
2.
The sign or signs may not be placed more than 12 hours before the start or remain more than 12 hours after the conclusion of the open house event.
3.
Signs shall not interfere with public facilities or roads.
(20)
Small signs. All businesses and residences may display up to two signs, each no larger than six square feet in area and no higher than five feet, attached to a freestanding sign structure, a window, or a building wall. This exemption includes, but is not limited to, freedom of speech signs and political signs.
(21)
Window signs. Window signs on a building in non-residential districts subject to the following provisions:
a.
Window signs shall not exceed 20 percent of the area of window and transparent door frontage on any building facade.
b.
Window signs may be located on the ground floor or second floor of a building.
c.
Any sign either hung within two feet of a window or attached to a display located within two feet of a window shall be considered a window sign.
The following types of signs, materials, designs, messages, and locations are prohibited:
(1)
Animated and moving signs. Animated, flashing, blinking, reflecting, revolving, or other similar signs or signs with visibly moving or rotating parts or visible mechanical movement of any kind, either adjacent to or as an integral part of the display, unless expressly allowed by this Chapter.
(2)
Inflatable signs. Signage or displays that are inflatable are prohibited regardless of location.
(3)
Portable signs. Signs not permanently attached to the ground or other permanent structure or signs designed to be transported including, but not limited to, signs designed to be transported by means of wheels; signs made as A-frames or T-frames; menu and sandwich board signs except where expressly provided for in this Chapter (See "Temporary Signs" in Section 11.27.120). Signs attached to or painted on vehicles parked and visible from the public right-of-way, unless said vehicle is used in the normal day-to-day operations of the business identified on the sign.
(4)
Roof signs.
a.
Attached signs that extend above the top of roof or parapet (whichever is higher) of a building with a flat roof.
b.
Attached signs that extend above the deck line of a mansard roof.
c.
Signs on rooftop structures such as penthouse walls or mechanical enclosures.
d.
However, signs that do not extend above the deck line of a mansard roof, and that do not extend above the parapet (or the roofline if no parapet is present) of a flat roof are permitted subject to the standards of Section 11.27.080(2), Wall Signs.
Figure 11.27.040(4): Prohibited Signs—Roof Signs
(5)
Signs creating traffic hazards.
a.
Signs located in such a manner as to constitute a traffic hazard or obstruct the view of traffic, any authorized traffic sign or signal device, or signs that may be confused with any authorized traffic sign, signal, or device; or which makes use of the words "stop," "look," "danger," or any other word, phrase, symbol, or character that interferes with, misleads, or confuses vehicular drivers in their use of roads.
b.
Signs within five feet of a fire hydrant, street sign, or traffic signal if such placement could create a safety hazard.
(6)
Signs that produce noise or emissions. Signs that emit visible smoke, vapor, particles, or odor; or signs that produce noise or sounds that can be heard at the property line, excluding voice units at menu boards.
(7)
Signs in the right-of-way. No signs shall be erected in the public right-of-way, with the exception of legal notices that are required by law to be placed upon public property to provide notice to the public; signs erected by a governmental body to promote public safety or direct or regulate pedestrian or vehicular traffic; public holiday lights and displays; district identification signs; civic identity signs; signs and banners posted by the County above streets or attached to lamp posts or utility poles that promote County-sponsored events.
(a)
Zoning clearance. All non-exempt signs require zoning clearance. When signs also require a building permit (i.e. free standing or signs with electrical), the Planning Department will review applications for building permits for signs and determine if the proposed signs are consistent with the requirements contained in this Chapter. Where a building permit is required a separate zoning clearance is not required.
(b)
Building permit required. No person shall erect, alter, repair, or relocate any sign without first obtaining any required building permit for such work from the Building Official. No permit shall be issued until zoning clearance has been given and the Building Department determines that such work is in accordance with the building or electrical codes of the County. Except as otherwise provided, permits required by this Chapter will be issued pursuant to the same terms and according to the same fee schedule as all other building permits.
(c)
Planned sign permit program. A planned sign permit program (PSPP) is required for multi-tenant projects and for signs that do not conform with all the standards of this Chapter, as specified in Section 11.27.130, Planned Sign Permit Programs.
(a)
Calculation of sign area. The area of an individual sign shall be calculated as follows:
(1)
Single-faced signs. Sign area shall include the entire area within a single continuous perimeter composed of squares or rectangles that enclose the extreme limits of all sign elements, including, but not limited to, sign structures or borders, individual channel letters, written copy, logos, symbols, illustrations, and color. Supporting structures such as sign bases and columns are not included in sign area provided that they contain no lettering or graphics except for addresses or required tags. The calculation of sign area for various types of single-faced signs is illustrated in Figure 11.27.060(a)(1).
Figure 11.27.060(a)(1): Calculation of Single-Faced Sign Area
(2)
Double-faced signs. Where two faces of a double-faced sign are located two feet or less from one another at all points, or located at an interior angle of 45 degrees or less from one another, the sign area shall be computed as the area of one face. Where the two faces are not equal in size, the larger sign face shall be used. Where two faces of a double-faced sign are located more than two feet or 45 degrees from one another, both sign faces shall be counted toward sign area. See Figure 11.27.060(a)(2).
Figure 11.27.060(a)(2): Calculation of Double-Faced Sign Area
(b)
Calculation of lot frontage. If a lot fronts on two streets, both frontages may be used for calculating the allowable sign area. On lots with three or more frontages on a public street, the length of only two contiguous sides shall be added together to determine allowable sign area.
Figure 11.27.060(b): Calculation of Lot Frontage
(c)
Measuring sign height. The height of a sign is the vertical distance measured from the ground level directly beneath the sign to the highest point at the top of the sign, including any structural or architectural components of the sign. The ground level shall be either the natural grade or finished grade, whichever is lowest.
(1)
Height of freestanding signs. The height of freestanding signs shall be measured as the vertical distance from grade at the edge of the right-of-way along which a sign is placed to the highest point of the sign, including any structural or architectural components of the sign. When the grade at the edge of the right-of-way is higher than the site on which the sign is placed, that portion of the sign below the grade at the edge of the right-of-way shall not be included in determining the sign's overall height. Signs oriented towards a freeway shall be measured from the project site grade or pad, whichever is lower.
(d)
Measuring sign clearance. Sign clearance shall be measured as the smallest vertical distance between finished grade and the lowest point of the sign, including any framework or other embellishments.
Figure 11.27.060(d): Measuring Sign Height and Clearance
(e)
Building frontage. Building frontage is the building facade that directly abuts a public street, private street, parking lot driveway or parking spaces in which main customer access is provided to the business. A building's frontage is considered continuous if projections or recesses in a building wall do not exceed ten feet in any direction. For buildings with two or more frontages, the length of the wall and allowable sign area shall be calculated separately for each building frontage.
This Section establishes general physical standards and requirements that apply to all signs types and districts.
(1)
Code compliance. Signs erected, installed, located or maintained in the County must comply with all applicable structural provisions of the most recently adopted versions of the Uniform Sign Code, California Building Code, and California Electrical Code adopted by the County.
(2)
Highway signs—Compliance with state and federal standards. No sign shall be allowed to conflict with state or federal standards for regulation of signs along State or interstate highway.
(3)
Encroachment into County right-of-way, public street, or sidewalk. Signs shall not be placed or project over, the County right-of-way, public street, or sidewalk unless an encroachment permit has been approved by the Public Works Department.
(4)
Intersection and driveway visibility. Signs shall not obstruct the visibility area specified in Section 11.19.130, Visibility at Intersections and Driveways.
(5)
Materials. Paper, cardboard, or other material subject to rapid deterioration shall be limited to signs displayed for no more than 60 days. Fabric signs shall be restricted to district identification and civic identity banners, awning signs, and temporary signs permitted pursuant to Section 11.27.120, Temporary Signs.
(6)
Weathered or damaged. The County reserves the right to remove any weathered or damaged special event and/or temporary signs.
(7)
Illumination. The illumination of signs, from either an internal or external source, shall be designed to avoid negative impacts on surrounding rights-of-way and properties. The following standards apply to all illuminated signs:
a.
Sign lighting shall not be of an intensity or brightness, or generate glare, that will create a nuisance for residential buildings in a direct line of sight to the sign;
b.
External light sources shall be directed, shielded, and filtered to limit direct illumination of any object other than the sign.
c.
All sign illumination shall be non-pulsating, continuous, and stationary.
This Section establishes locational and other general standards for specific sign types that apply to all districts where such signs are permitted. Additional standards applicable to these signs in specific zoning districts are located in Sections 11.27.090, 11.27.100, and 11.27.110.
(1)
Freestanding signs. Freestanding signs, including pole and monument signs, are allowed, subject to the specific zoning district and use standards and the following standards:
a.
Freestanding signs shall not be erected or maintained closer than three feet to any building.
b.
Freestanding signs shall be located so as to maintain a setback, measured from that part of the sign that is closest to the nearest property line of the parcel or lot on which it is placed, equal to at least one-half the height of the sign.
c.
Freestanding signs shall include a base treatment that is consistent with the colors and materials of the buildings on the project site. Signs over ten feet in height shall include at least a five foot tall by two foot wide base.
d.
The colors and materials of the sign(s) shall be compatible with the colors and materials of the building(s).
Figure 11.27.080(1): Freestanding Signs
(2)
Wall signs. Wall signs include any sign attached to, erected against or painted upon the wall of a building or structure. Wall signs are allowed, subject to the specific zoning district and use standards and the following standards:
a.
Wall signs may be:
1.
Attached flat against or pinned away from a building wall, but shall not extend or protrude more than one foot from the wall; or
2.
Attached to the facade of a building or on a sloping roof (mansard roof), but shall not extend above the upper edge of the facade or the sloping roof.
b.
Wall signs shall not be placed higher than the second story of a building.
c.
Wall signs shall not cover or interrupt major architectural features, including such features as doors, windows, or tile embellishments.
d.
Wall signs shall not extend higher than the building wall upon which they are attached.
e.
Signs placed on window spandrels, fascias, or sloping mansard roofs shall be centered vertically on such spandrel, fascia, or roof. The height of a sign placed on a spandrel, fascia, or roof shall not exceed two-thirds of the height of the feature to which the sign is attached.
Figure 11.27.080(2): Wall Signs
(3)
Projecting signs. Signs under canopies or covers in conjunction with pedestrian walkways, or signs projecting from the building wall are allowed, subject to the specific zoning district standards and use and the following standards:
a.
Placement. No portion of a projecting sign shall extend above the highest point of a building wall or parapet. The highest point of any projecting sign shall not exceed 15 feet above grade.
b.
Minimum clearance. The lowest point of a projecting sign must be at least eight feet above the surface of any public sidewalk or street.
c.
Encroachment. All signs that project into the public right-of-way shall be designed and located so as to cause no harm to street trees. Signs projecting into the public right-of-way are subject to an encroachment permit.
d.
Maximum area. No projecting sign shall exceed 16 square feet in area or eight square feet if hung under a canopy or awning.
Figure 11.27.080(3): Projecting Signs
(4)
Awning signs. Signs painted on awnings, canopies, arcades, or similar attachments or structures are allowed. Awning signs are subject to the specific zoning district and use standards and the following standard:
a.
Maximum surface area. No awning sign shall exceed ten square feet or 25 percent of the surface area of the awning, whichever is less.
b.
Placement. No awning or awning sign shall extend above 25 feet or the top of the second floor of a building, whichever is less.
c.
Minimum clearance. Awnings and canopies shall be located a minimum of eight feet above grade, measured from the lowest structural element of the awning or canopy.
d.
Illumination. Awning and canopy signs shall be unlighted.
Figure 11.27.080(4): Awning Signs
(5)
Menu/order board signs. Outdoor menu/order board signs are subject to the following standards:
a.
Uses allowed with. Outdoor menu/order board signs are allowed on the site of a permitted drive-in, walk-up, or drive-thru facility.
b.
Number. A maximum of two per business with a drive-thru facility and one per business with a walk-up window.
c.
Location.
1.
Menu/order board signs shall be located adjacent to the drive-thru aisle or walk-up window; and
2.
The signs shall not be located so as to impair the vision of the driver of a vehicle traveling either into, out of, or through the drive-thru aisle.
d.
Area. The area of each menu/order board sign shall not exceed 32 square feet.
e.
Height. The height of a menu/order board sign, including the pole or base, shall not exceed six feet from grade.
(6)
Subdivision signs. Signs for residential subdivisions include temporary off-premises advertising signs as well as permanent on-premises signs that serve as community identification.
a.
Off-premises subdivision signs. Off-premises signs that advertise a residential subdivision shall comply with the following standards:
1.
Number. No more than two signs are allowed per intersection.
2.
Location.
i.
Freestanding signs shall maintain a setback, measured from the part of the sign that is closest to the nearest property line of the parcel or lot on which it is placed, equal to at least one-half the height of the sign;
ii.
Off-premises subdivision signs shall be located only on property with written permission from property owner;
iii.
Off-premises subdivision signs shall be located within 500 feet of an intersection (measured at centerline); and
iv.
Signs at other locations may be approved as part of an area plan or Planned Sign Permit Program.
3.
Area. The area of any off-premises subdivision sign shall not exceed 64 square feet each.
4.
Height and width. Off-premises subdivision signs shall not exceed:
i.
Fifteen feet in height; and
ii.
Sixteen feet in width.
5.
Design. Off-site subdivision signs shall be freestanding and shall not contain more than two advertising sides. They shall conform to any plan area sign guidelines for the area or, if there are no applicable guidelines, they shall conform to the following design standards:
i.
Copy relating to specific subdivisions is limited to the subdivision name, a logo, and a directional arrow or directions to the subdivision; and
ii.
Any deviation from this design or the design established in the specific plan sign guidelines shall be reviewed as a Planned Sign Permit Program.
6.
Erection and removal.
i.
No off-site subdivision sign shall be erected until at least one subdivision is advertised on the sign;
ii.
A subdivision name may not be advertised on the sign before either a building permit or a public report by the Department of Real Estate has been issued for the subdivision;
iii.
A subdivision name shall be removed from the sign within 30 days if no model homes or lots are available for viewing or sale; and
iv.
The off-site subdivision signs shall be removed if no subdivision name has been advertised on it for a period of 90 days.
7.
Other. Other types of subdivision advertising signage, such as ladder signs and model home complexes, may be approved as part of a plan area or Planned Sign Permit Program.
Figure 11.27.080(6)a.: Off-Premises Subdivision Signs
(7)
On-site subdivision signs. On-site subdivision signs shall comply with the following standards:
a.
Number. No more than a total of four signs are permitted at each subdivision entrance. Within this total may be included:
1.
No more than two freestanding signs; or
2.
No more than two walls signs; and
3.
No more than two logo signs.
b.
Location.
1.
Freestanding subdivision sign(s) shall:
i.
Be located at the entrance to the subdivision to which they relate on either one or both sides of the subdivision entrance; and
ii.
Maintain a setback, measured from the part of the sign that is closest to the nearest property line of the parcel or lot on which it is placed, equal to at least one-half the height of the sign.
2.
No on-site subdivision signs shall be permitted for an entrance from another subdivision.
3.
Wall signs may be mounted on an entry wall or sound wall on one or both sides of the entrance road to the subdivision.
4.
Logo signs may be mounted on an entry wall or sound wall (including pilasters) on one or both sides of the entrance road to the subdivision.
c.
Area.
1.
The maximum area of each freestanding sign shall be 32 square feet.
2.
The maximum area of each wall sign shall be 32 square feet.
3.
The maximum area of each logo sign shall be four square feet.
d.
Height. The maximum height of an on-premises subdivision sign shall be six feet.
e.
Design. On-site subdivision signs shall be used as community identification and shall not have the community builder's name or logo located on any signs.
The following signs are allowed in agricultural districts, rural community districts, and natural resource districts.
(1)
Freestanding signs.
a.
Number.
1.
Individual uses. For purposes of this Section, individual uses are sites with three or fewer tenant spaces or buildings on a single parcel. One freestanding sign is permitted for each street frontage of the lot. For lots with over 700 lineal feet of frontage and more than one driveway entrance a second freestanding sign shall be permitted. The total number of freestanding signs for an individual use shall not exceed two.
2.
Rural commercial centers. For purposes of this Section, rural commercial centers are sites designated as Rural Commercial that have four or more tenant spaces or buildings on a single parcel or adjacent parcels with shared parking and access. One freestanding sign is permitted for each street frontage of the lot. One additional freestanding sign is permitted for every 700 lineal feet of street frontage. The total number of freestanding signs for a rural commercial center shall not exceed four.
b.
Area. Each freestanding sign shall not exceed a signage area of 36 square feet for individual uses or 60 square feet for rural commercial centers.
c.
Height. Monument signs shall not exceed a height of eight feet. Properties that are directly accessed off of a state high way or a roadway with a posted speed limit of 55 miles per hour may install a pole sign not to exceed a height of 15 feet.
d.
Setbacks. Freestanding signs shall be set back at least ten feet from the road right-of-way.
(2)
Wall signs. Each tenant may have one wall sign not to exceed one and one-half square feet per lineal foot of building frontage of the tenant space, with a maximum of 40 square feet per tenant.
(3)
Subdivision signs. On-premises and off-premises subdivision signs are allowed according to the standards of Subsection 11.27.080(6), Subdivision Signs.
(4)
Illumination. With the exception of properties designated as rural commercial or public facility, signs shall not be internally illuminated.
The standards of this Section shall apply to signs in residential districts, as well as to residential uses located in any mixed-use district.
(1)
Freestanding signs and signs mounted on fences or sound walls. One freestanding sign or a sign mounted on a fence or sound wall is allowed on the site of a multi-unit residential or single room occupancy use with three or more units. The sign shall not exceed 32 square feet in area or six feet in height.
(2)
Wall signs. One wall sign not to exceed 40 square feet in area is allowed on the site of a multi-unit residential or single room occupancy use with three or more units.
(3)
Directory sign. One directory sign per primary entrance is allowed per primary entrance on the site of a multi-unit residential or single room occupancy use with three or more units.
(4)
Subdivision signs. On-premises and off-premises subdivision signs are permitted according to the standards of Subsection 11.27.080(6), Subdivision Signs.
(5)
Illumination. No sign in a residential district shall be internally illuminated. Illumination, if any, shall be indirect.
The standards of this Section apply to signs for nonresidential uses located in commercial and mixed-use, employment, and public and semi-public districts. Residential uses located within these districts shall be subject to the provisions in Section 11.27.100, Sign Standards—Residential Districts and Uses.
(1)
Freestanding signs. Freestanding signs are permitted according to the standards of Section 11.27.080, Standards for Specific Sign Types and the following:
a.
Number.
1.
Individual uses. Every individual use may erect and maintain one freestanding sign plus one additional sign if the project has more than one street frontage or is adjacent to a freeway, or has over 700 lineal feet of street frontage and more than one driveway entrance. The total number of freestanding signs for an individual use shall not exceed two.
2.
Building complexes. Developments of three or more nonresidential buildings, tenants, or uses may erect and maintain:
i.
One on-site freestanding sign per building complex;
ii.
One additional on-site freestanding sign for building complexes with more than one street frontage when an entrance to the building complex is provided, or when freeway frontage exists and the additional sign is oriented towards the freeway; and
iii.
One additional on-site freestanding sign is permitted for every 700 lineal feet of street frontage.
b.
Height.
1.
DC Districts and neighborhood service uses in residential districts: eight feet.
2.
Other nonresidential districts: Signs may not exceed a height of 20 feet.
3.
Sites that are adjacent to a freeway or state highway may increase the height of one of their permitted signs to a maximum height of 25 feet so long as the sign is oriented towards the freeway or highway.
c.
Area.
1.
DC Districts and neighborhood service uses in residential districts: 36 square feet (excluding sign base).
2.
Other Nonresidential Districts: 150 square feet (excluding sign base).
(2)
Wall signs. Wall signs are permitted according to the standards of Section 11.27.080, Standards for Specific Sign Types and the following:
a.
Number.
1.
Individual uses. Every individual use may erect and maintain up to two wall signs, provided that each sign is located on a different side of the building and faces a public entrance, street, or parking lot.
2.
Building complexes. Developments of three or more non-residential buildings, tenants, or uses may erect and maintain:
i.
Major tenants are permitted an unlimited number of wall signs;
ii.
Freestanding pad buildings with one tenant are permitted three wall signs, provided that each sign is located on a different side of the building and faces a public entrance, public street or parking lot;
iii.
Freestanding pad buildings with two or more tenants are permitted two wall signs per tenant, provided that the signs for each tenant are located on a different side of the building and face a public entrance, public street or parking lot; and
iv.
Uses that are neither major tenants nor freestanding pad buildings are permitted one wall sign; however, a use on a corner of the building is permitted two wall signs, provided that each sign is located on a different side of the building and faces a public entrance, a public street, or a parking lot.
b.
Area. The combined area of all wall signs for a building shall not exceed one and one-half square feet per lineal foot of building frontage, with a maximum of 200 square feet per use. Major tenants of a building complex with 100,000 square feet or more of floor area are permitted up to a maximum of 300 square feet of cumulative wall sign area.
c.
Length. The length of any wall sign shall not exceed 70 percent of the length of the tenant space facade or building facade to which it is attached.
(3)
Projecting signs. Every individual use in the DC and NMX districts and in building complexes with three or more non-residential buildings, tenants, or uses, may erect and maintain one projecting sign according to the standards of Section 11.27.080, Standards for Specific Sign Types.
(4)
Awning signs. Each non-residential ground-floor establishment may display up to three awning signs, with only one sign per awning in accordance with the standards of Section 11.27.080, Standards for Specific Sign Types.
(5)
On-site directional signs. Signs to direct on-site traffic circulation are permitted according to the following standards:
a.
Number.
1.
One directional sign is permitted for each one way driveway;
2.
One directional sign is permitted for each drive-through aisle;
3.
One directional sign is permitted for each service or delivery entrance; and
4.
Additional directional signs are permitted if a health and safety need is demonstrated to the satisfaction of the Planning Director.
b.
Area. The area of each directional sign shall not exceed four square feet.
c.
Height. The height of each directional sign including the base may not exceed four feet.
d.
Location.
1.
Directional signs shall be set back from any property line at least one-half the height of the sign; and
2.
Signs shall not be located so as to impair the vision of the driver of a vehicle traveling either into, out of, or through the site.
(6)
Off-site directional signs. Non-residential uses located outside the valley growth boundary may request a zoning clearance approval for off-site directional signs. Off-site directional sign requests shall meet the following criteria:
a.
Applicant has demonstrated the sign(s) is necessary to direct customers to the business.
b.
Signs are located within one mile (to extent feasible) of turn-off road that business is located on.
c.
Sign shall be located at least 500 feet from another off-site directional sign located on the same side of the roadway.
d.
Sign does not exceed 32 square feet in area and eight feet in height. Shared signs for two or more businesses shall not exceed 70 square feet in area.
e.
Sign copy is limited to name and address of business, logo not exceeding two square feet in area, turning direction and distance to turn.
f.
Written proof from property owner allowing the placement of off-site sign on their property.
g.
Sign is located outside of public right-of-way and clear vision triangle.
h.
The business name and information shall be removed from the sign within 30 days of the business closing or relocating. Off-site directional signs shall be removed if no business name has been advertised for a period of 90 days.
i.
Off-site directional signs shall not be used to affix temporary banner signs or other signs or information not directly related to the purpose of the off-site directional sign.
(7)
Menu/order board signs. Menu/order board signs are permitted according to the standards of Section 11.27.080, Standards for Specific Sign Types.
(8)
Programmable electronic signs. Programmable electronic signs are permitted according to the following standards:
a.
Uses allowed with. Programmable electronic signs are allowed on the site of the following uses and for the following purposes:
1.
On the site of a service station, in order to display the price of fuel.
2.
On the site of a Hotel or Motel, in order to display room rates and vacancies.
3.
On the site of a theater, cinema, stadium, auditorium, church, or similar community assembly, cultural institution, indoor entertainment and recreation, and outdoor entertainment uses, programmable electronic signs shall be limited to advertisement or notification of events occurring solely on the premises or within the immediate community. Signs may also be used to post emergency information.
4.
In order to display time and temperature.
5.
Governmental signs for posting public and community information.
b.
Standards. Programmable electronic signs shall comply with the provisions for freestanding signs as provided by Subsection 11.27.080(1), Freestanding Signs, and wall signs as provided by Subsection 11.27.080(2), Wall Signs.
c.
Cinemas and theaters. In addition to the other standards of this Section, the following provisions apply to signs on the site of a cinemas or theaters.
1.
Number. A maximum of one programmable electronic sign is permitted per movie theatre.
2.
Location.
i.
Displays shall be located within ten feet of a box office, ticket window, or building entrance.
ii.
Signs shall be oriented to be readable by pedestrians rather than from auto travel areas.
3.
Area. Programmable electronic signs shall be limited to a maximum area of 30 square feet.
(9)
Service stations. In addition to the other standards of this Chapter, the following provisions apply to signs on the site of a service station.
a.
Freestanding fuel price signs.
1.
Number. In addition to the freestanding sign for an individual use permitted by Section 11.27.110, Sign Standards—Non-residential Districts, each service station shall be permitted to erect and maintain one freestanding price sign for the primary purpose of advertising motor vehicle fuel prices. The sign shall comply with the provisions of California Business and Professions Code § 13531 regarding display requirements.
2.
Location.
i.
Freestanding fuel price signs shall not be erected or maintained any closer than three feet to any building; and
ii.
Any freestanding fuel price sign shall maintain a setback, measured from that part of the sign that is closest to the nearest property line of the parcel or lot on which it is placed, equal to at least one-half the height of the sign.
3.
Sign area. The maximum area of any fuel price sign shall be 100 square feet.
4.
Maximum height. The maximum height for any motor vehicle fuel price sign shall be 15 feet.
5.
Base design. The base of any fuel price sign shall be constructed of materials that match the exterior materials utilized on the main building.
6.
Electronic displays.
i.
Fuel price signs may consist of programmable electronic signs. Use of such programmable electronic signs shall be limited to the portion of any sign structure devoted exclusively to display of motor vehicle fuel price information required or permitted by California Business and Professions Code § 13530 et seq.
ii.
Displays shall not be flashing or moving but shall remain static. Displays may not be changed more than once per 12-hour period.
b.
Wall signs. Wall signs associated with a service station shall comply with the standards of Section 11.27.080(2), Wall Signs, except as otherwise specified in this Section.
c.
Awning signs. Each service station site may have up to four awning signs located upon the fuel canopy. Corporate logos and symbols shall be included in sign area.
d.
Combined area of wall and awning signs. The combined area permitted for all wall signs and awning signs for each service station shall not exceed 200 square feet.
e.
Fuel pump and under-canopy signs. Additional signs advertising the price of each grade of gasoline may be placed on each gasoline pump or beneath any canopy which is over the gasoline pumps.
Temporary banners, streamers, flags (excludes official flags pursuant to Chapter 11.27.030, Exempt Signs), or portable signs, as defined herein, for special events or sales, such as new car sales, clearance sales, outdoor fairs and sales, grand openings, and events of a similar nature. These signs shall not replace the primary permanent sign(s) for a business, and the business must have a permanent sign permit on file with the County.
(1)
Number. No more than two such temporary signs may be erected per business at any one time.
(2)
Duration. Signs may be posted on a continuous basis, but shall be kept in a good state of repair and preservation. These signs shall be made of a durable material and shall be subject to the same maintenance provisions as permanent signs.
(3)
Design. Temporary signs shall not be illuminated and shall not contain moving parts.
(4)
Maximum area. The following standards will be utilized in determining the maximum sign square footage allowed per business:
a.
Building or tenant spaces having less than 50 linear feet of building frontage are allowed a total of 60 square feet of sign area.
b.
Buildings or tenant spaces within a building complex having more than 50 linear feet of building frontage but less than 100 feet of building frontage are allowed a total of 80 square feet of sign area.
c.
Buildings or tenant spaces within a building complex having more than 100 feet of building frontage are allowed a total of 120 square feet of sign area.
(5)
Traffic and visibility. Such temporary signs shall in no way obstruct or visually impair the public right-of-way or internal walkways.
(6)
Location. If a banner sign is used, it may be affixed to the face of a building, perimeter wall/fence, or permanent freestanding sign. If attached to a freestanding sign, it shall be fully adhered to the face of the existing sign and be restricted to only one sign per center/use. Freestanding banners shall be adequately anchored to the ground in a manner that can be removed and does not cause a safety hazard. Temporary signs shall be restricted to the building areas that front onto a street or parking lot directly adjacent to the business for which the sign is posted. If affixed to a building, these signs shall not extend above the roofline or parapet of the structure.
(7)
Additional temporary signs may be authorized for a limited period of time through approval of a waiver by the Zoning Administrator.
(a)
PSPP required. A planned sign permit program (PSPP) is required for:
(1)
Off-site subdivision signs not in conformance with Section 11.27.080(6), Subdivision Signs.
(2)
Plan area (i.e. specific plan, community plan, area plan) signs not in conformance with the standards of this Chapter.
(3)
Community or regional marketing or branding signs.
(4)
Modification of an existing PSPP.
(b)
Application information. An application for a PSPP shall be filed with the Planning Department, consistent with the procedures of Chapter 11.53, Common Procedures. In addition to any other required information, applications for a PSPP shall include the following information as applicable:
(1)
Computation of total allowable sign area for the site and total area of all proposed signage.
(2)
A site plan indicating the location of buildings and all proposed signs;
(3)
Elevation drawings of all buildings on the site on which signs are proposed to be located, with the general size and placement of signs indicated on the elevations;
(4)
Drawings of generic sign types, including information on sign materials and color schemes;
(5)
A written program of criteria for all sign types, including, but not limited to, number, type, location, size, height, materials, letter style, colors, and illumination; and
(6)
Any additional information or materials necessary for processing and review of the application as deemed necessary by the Planning Director.
(c)
Allowable modifications. A PSPP may provide for additional sign area and other deviations from the standards of this Chapter.
(d)
Decision-making authority.
(1)
An application for a PSPP shall be reviewed and acted upon by the Development Review Committee.
(2)
In the case of projects that require other approvals from the Planning Commission or Board of Supervisors, the decision-making authority for the other permit shall be the decision-making authority for the PSPP.
(e)
Criteria for approval. The decision-making authority shall only approve a PSPP if it makes all of the following findings:
(1)
The sign program incorporates common design elements such as sign materials, colors, and/or themes that will serve to create a coherent appearance for the site;
(2)
The proposed signs will be visually compatible in style, scale, and character with on-site buildings and any surrounding structures;
(3)
Building-mounted signs will be in appropriate proportion to building facades;
(4)
Proposed signs will not adversely affect surrounding land uses or obscure adjacent conforming signs;
(5)
Future tenants will be provided adequate opportunities to construct, erect or maintain a sign for identification;
(6)
Directional signage and building addressing is adequate for pedestrian and vehicular circulation and emergency vehicle access; and
(7)
The PSPP is consistent with any adopted design guidelines or sign standards for any specific, community, or area plan covering the site.
(f)
Effect of PSPP.
(1)
Upon approval of a PSPP, all future signs erected in the area governed by the PSPP shall conform to the PSPP, and no permits shall be issued for signs not in conformance with the criteria of the PSPP.
(2)
Relief from the provisions or criteria of a PSPP may be granted only with the approval of a new PSPP.
(3)
If the provisions of an approved PSPP conflict with other provisions of this Chapter, the PSPP shall control.
(g)
Permits for sign within a PSPP. Any person wishing to erect or maintain a sign within any area governed by a PSPP shall apply for a building permit and obtain a Zoning Clearance. The Zoning Administrator shall grant a clearance for individual signs consistent with the PSPP and deny an application for any sign(s) not in conformance with the criteria of an applicable PSPP.
(h)
Lessees to be informed of PSPP. Lessees within developments subject to the requirements of an approved PSPP shall be made aware of the PSPP in their lease.
All existing non-conforming signs shall either be removed or modified to conform with provisions of this Chapter when a change of use or occupancy, or expansion of a use is approved, except as provided below:
(1)
Pole signs. The continued use of legally established pole signs in a Commercial District shall be permitted, provided no modification or alteration is made other than change of copy.
(2)
Limited alterations. A non-conforming sign may not be expanded, extended, reconstructed, moved, or altered in any way, except according to the following provisions:
a.
Changes in sign face, copy, graphic design or color are permitted.
b.
Such non-conforming sign may be removed for purposes of repair and routine maintenance, including painting, provided that such sign is replaced within 60 days of its removal.
c.
Such non-conforming sign may be removed for the purpose of remodeling a building, provided that replacement occurs within 30 days after remodeling is completed.
(3)
Restoration of a damaged sign.
a.
Whenever a lawful non-conforming sign is destroyed by fire or other calamity to an extent of 50 percent or less, the sign may be restored and the non-conforming use of the sign may be resumed, provided that restoration is started within one year and diligently pursued to completion.
b.
Whenever a non-conforming sign is destroyed by fire or other calamity to a greater extent than 50 percent, or is voluntarily razed or is required by law to be razed, the sign shall not be restored except in full conformity with this Code.
c.
The extent of damage or partial destruction shall be based upon the ratio of the estimated cost of restoring the sign to its condition prior to such damage or partial destruction, to the estimated cost of duplicating the entire sign as it existed prior thereto. Estimates for this purpose shall be made or shall be reviewed and approved by the Building Official or his or her designee.
(4)
Abandonment of non-conforming sign. Whenever a non-conforming sign has been abandoned, or the use of the property has been discontinued for a continuous period of 90 days, the non-conforming sign shall be removed.
Every sign displayed within the County, including but not limited to those signs for which permits are or are not required, shall be maintained in good physical condition. All signs, together with supports, braces, anchors, and electrical components, shall be kept in a safe, presentable condition. All defective or broken parts shall be replaced. Exposed surfaces shall be kept clean, in good repair, and painted where paint is required. The Planning Director may order the repair or removal of any sign determined by the County to be unsafe, defective, damaged, or substantially deteriorated. The Planning Director may declare a sign abandoned if, after 90 days' written notice to the permit holder, the permit holder has failed or refused to maintain the sign. Upon such declaration, the sign may be considered abandoned and abated as provided in Section 11.27.160, Removal of Illegal Signs.
The following signs as described below are declared to be public nuisances and may be removed by the Planning or Building Director or his or her designated representative in accordance with the abatement procedure described in Chapter 7.36, Property Maintenance Ordinance, of the County Code.
(1)
Abandoned signs (over 90 days).
(2)
Destroyed or damaged signs (over 50 percent and the destruction is other than facial copy replacement).
(3)
Flashing, rotating, or flying signs.
(4)
Non-conforming temporary signs.
(5)
Unsafe signs or any sign that constitutes a traffic hazard.
(6)
Any other sign that is prohibited per Section 11.27.040, Prohibited Signs.
(7)
Any sign installed after March 26, 1985 without a building permit which sign required a building permit at the time of its installation.
The provisions of this Section may be waived or modified through approval of a waiver or variance where the decision-making authority finds the strict adherence to the sign regulations is not practical or will cause an undue hardship.
(a)
The lack of improved sidewalks within the valley growth boundary of Yuba County in many instances forces pedestrians, including school children, to walk in the streets and to be subjected to the hazards of vehicular traffic, and the lack of sidewalks during rainy weather has caused unhealthy conditions resulting from pedestrians walking through mud or water along the street or dirt sidewalks.
(b)
The lack of improved curbs and gutters within the valley growth boundary of Yuba County permits poor drainage, puddles of water, the accumulation of filth, and subjects pedestrians and children in the normal sidewalk area to increased risk from accidental injury by vehicular traffic.
(c)
The lack of improved streets within the valley growth boundary of Yuba County also permits poor drainage, puddles of water, and accumulation of filth and, in addition, impedes the operation of fire trucks, police cars and other emergency vehicles.
(d)
The existence of unimproved curbs, gutters, sidewalks and streets adjoining unimproved real property dwellings and buildings within the valley growth boundary of Yuba County or conversely, the lack of adequate curbs, gutters, sidewalks and streets is hereby found and declared to be prejudicial and dangerous to the public health, safety and welfare of the inhabitants of the County.
(e)
Throughout the County of Yuba, in order to provide for the proper and orderly development of public road, drainage, utility, and related systems for the benefit of the public and to provide for the general welfare, health and safety of the public, it has been determined that right-of-way dedications shall be required as provided in this Chapter.
(a)
Construction of new buildings within the valley growth boundary. Any person who places or constructs or causes to be placed or constructed in the urban areas of Yuba County any building, dwelling, or other structure on a vacant parcel for which a building permit is required, shall construct driveways, curbs, gutters, sidewalks and streets in accordance with the County of Yuba Standard Plans and Specifications along all street frontage adjoining the property upon which building, dwelling, or other structure is constructed, unless adequate curbs, gutters, sidewalks or streets already exist. In each instance, the Department of Public Works of the County of Yuba shall determine whether or not adequate curbs, gutters, sidewalks and streets already exist, and an endorsement to that effect shall be made on each application for a building permit prior to the time such permit is issued.
(b)
Alteration, expansion or enlargement of existing buildings within the valley growth boundary. Any person who constructs or causes to be constructed any accessory building or who alters, enlarges or expands or causes to be altered, enlarged or expanded any building, dwelling, or other structure in any urban area of Yuba County where the valuation of such accessory building, alteration, enlargement, or expansion exceeds the sum of $25,000.00 (within a three-year period), shall also construct curbs, gutters, sidewalks and streets in accordance with the County of Yuba Standard Plans and Specifications along all street frontage adjoining the property upon which such building, dwelling, or other structure is altered, enlarged, or expanded, or upon which such accessory building is constructed, unless adequate curbs, gutters, sidewalks or streets already exist. In each instance the Department of Public Works of the County of Yuba shall determine whether or not adequate curbs, gutters, sidewalks and streets already exist, and an endorsement to that effect shall be made on each application for a building permit prior to the time such permit is issued.
(c)
Use permit or variance. The decision-making authority may require as a condition for the issuance of a use permit or variance that the applicant for such use permit or variance construct or cause to be constructed driveways, curbs, gutters, sidewalks, streets, and drainage improvements to conform to the policy provisions of the Yuba County General Plan as adopted or amended and in accordance with the County of Yuba Standard Plans and Specifications.
(d)
Waiver. The Director of Public Works may modify, or through recordation of a Deferred Improvement Agreement, defer the requirement for curbs, gutters, sidewalks, or streets when he or she finds that any of the following conditions exist:
(1)
The proposed improvement cannot function properly due to lack of complementary facilities on the adjacent frontage or reasonably appurtenant to such frontage, and there is no planned or budgeted work by the County or other appropriate agency to provide such complementary facilities.
(2)
Topographical features or other physical conditions would prevent the actual installation.
(3)
Topographical features or other physical conditions would permanently obstruct or prevent proper functioning and use of the completed improvements.
(e)
Review by Board of Supervisors. Upon written application being made to the Board of Supervisors, the Board of Supervisors may waive or modify by resolution or minute action the requirements of the Department of Public Works when the Board of Supervisors finds that any one of the following conditions exist. The decision of the Board to approve, modify, conditionally approve, or waive the requirements of the Department of Public Works shall be final. Said conditions are as follows:
(1)
The Board of Supervisors determines that because of lack of adequate data in regard to grades, plans or surveys, the construction of curbs, gutters and sidewalks should be deferred to a later date.
(2)
The Board of Supervisors determines that the County or any other agency has planned or budgeted for a project encompassing the block or other appropriate unit of the area in question and the proposed improvements normally required under this Chapter would conflict with such project; or such improvements could not function properly without completion of the above-mentioned project, in which event the required improvement may be deferred for a period of two years subject to the execution of an agreement providing for the installation of the improvements within such two-year period or within such period thereafter as extended by the Board of Supervisors. Such agreement shall provide that the applicant shall furnish a faithful performance bond to be approved by the Board and by its terms made to inure to the benefit of the County and conditioned upon the performance of the terms and conditions of said agreement.
(3)
The Board of Supervisors determines that the public health, safety and welfare of the inhabitants of said county would not be endangered by the deferment of the construction of curbs, gutters, sidewalks and streets in conjunction with the proposed construction or expansion.
The required street frontage improvements shall be designed and constructed in accordance with County standards and specifications, and shall be subject to inspection and approval by the Director of Public Works.
(1)
Arrangements for relocation of public utility facilities. In the event that the Public Works Director determines that the contemplated construction of adequate curbs, gutters, sidewalks or streets as may be required in individual cases will necessitate the relocation or alteration of public utility facilities, including, but not limited to gas, electricity, telephone and water, said Public Works Director may require the person requesting the building permit pursuant to this Chapter to produce satisfactory evidence that such person has made arrangements and financial coverages with such public utility companies for the relocation or modification of said public utility facilities.
(2)
Denial of final approval and acceptance. The Building Official shall deny final approval and acceptance and shall refuse to allow final public utility connections to any such building or structure, unless the Director Public Works determines that the installation of such improvements may be made at some future date, and in such event their construction and installation shall be guaranteed to the satisfaction of the Public Works Director or the Board of Supervisors.
The Director of Public Works is empowered to collect fees in lieu of actual construction to cover the estimated costs of constructing curbs, gutters, sidewalks and streets and related improvements required by this Chapter when the following conditions exist:
(1)
The Director of Public Works finds that the proposed improvements will not function properly at the time of development of the property.
(2)
The proposed improvements can be more economically constructed in conjunction with programmed complementary facilities that are planned to be constructed subsequent to the date of map recordation or other granting of entitlement by the County, provided that said delay would not result in any detriment to the general health, safety and welfare to the residents of the County.
(a)
General.
(1)
Dedication. In both urban and non-urban areas of Yuba County, any person who places or constructs or causes to be placed or constructed any building, dwelling, or other structure, or any new installation for which a building permit, use permit, or other entitlement is required shall, in addition to other requirements of this Chapter and subject to the requirements stated in Subsections (B) and (C) of this Section, dedicate to the County sufficient right-of-way from the centerline of the roadway to bring the one-half width of the right-of-way adjoining the property upon which such building, dwelling, or other structure is constructed, to one-half of the width outlined in the Circulation section of the Community Development Element of the General Plan or the County standard plans for the particular road classification, or as approved by the Director of Public Works. Right-of-way section shall be full width if road bisects subject property (i.e. property is located on both sides of the road). Such right-of-way dedication may be offered to County in fee or easement as determined by the Director of Public Works
(2)
Setback requirement. In both urban and non-urban areas of Yuba County, any person who places or constructs or causes to be placed or constructed any building, dwelling, or other structure, or any new installation for which a building permit, use permit or other entitlement is required shall, in addition to other requirements of this Chapter, comply with a building setback area over that portion of the property which fronts existing streets. The setback area shall be as required by the zone district that the property is located in.
(b)
Conditional use permits. All Minor Use Permits and (Major) Conditional Use Permits will require dedications in accordance with Subsection (a) of this Section. However for parcels having greater than 200 feet of undeveloped frontage, instead of dedications being required along the entire frontage, dedications may be limited to the frontage of that portion of the parcel being improved, except that in no case shall the length of the dedication be less than 200 feet or the width of the lot frontage, whichever is less. For parcels in which the proposed site improvements are not contiguous with the road, the Public Works Department will determine the length of the required dedication within the property limits necessary to provide for right-of-way needs for all current and future impacts produced by the project and ensure adequate right-of-way to meet future circulation needs, but in no case shall such dedication be less than 200 feet of frontage or the width of the lot frontage, whichever is less. The determination made pursuant to the preceding sentence may be appealed to the Planning Commission.
(c)
Building permits. All building permits will require dedications in accordance with Subsection (a) of this Section. However, for parcels having greater than 200 feet of undeveloped frontage, instead of dedications being required along the entire frontage, dedications may be limited to the frontage of that portion of the parcel being improved, except that in no case shall the length of dedication be less than 200 feet or the width of the lot frontage, whichever is less. For parcels in which the proposed site improvements are not contiguous with the road, the Public Works Department will determine the length of the required dedication within the property limits necessary to provide for right-of-way needs for all current and future impacts produced by the project and ensure adequate right-of-way to meet future circulation needs, but in no case shall such dedication be less than 200 feet of frontage or the width of the lot frontage, whichever is less. The determination made pursuant to the preceding portions of this Subsection may be appealed to the Planning Commission.
(d)
Exemption.
(1)
Right-of-way dedications shall not be required pursuant to Subsection (c) above for a building permit issued for improvements having a valuation less than $25,000.00 (within a three-year period) and provided that any building meets the building setback requirements described in Subsection (a)(2) of this Section.
(e)
Waiver.
(1)
Director of Public Works. The Director of Public Works shall have the authority to waive dedications for rights-of-way and requirement for setback width required for future right-of-way where there are existing permanent structures within these areas. The waiver shall be limited to the area necessary to preserve the existing facilities.
(2)
Board of Supervisors. Upon written application being made to the Board of Supervisors of the County of Yuba, the Board of Supervisors may waive or modify the dedication and setback requirements of this Section upon the showing of good cause. Good cause shall be shown if a finding can be made that such action is in keeping with the purposes and intent of this Section and the Yuba County General Plan.
Urban development within the valley growth boundary shall be subject to the following requirements:
(1)
Required undergrounding of utility wires in district. Whenever the Board of Supervisors creates an underground utility district and orders the removal of poles, overhead wires and associated overhead structures, it shall be unlawful for any person or utility to erect, construct, place, keep, maintain, continue, employ or operate poles, overhead wires and associated overhead structures in the district after the date when said overhead facilities are required to be removed by such resolution, except as said overhead facilities may be required to furnish service to an owner or occupant of property prior to the performance by such owner or occupant of the underground work necessary for such owner or occupant to continue to receive utility service as provided in Section 11.29.030, Responsibilities, hereof, and for such reasonable time required to remove said facilities after said work has been performed, and except as otherwise provided in this Chapter.
(2)
Exception for emergency or unusual circumstances. Notwithstanding the provisions of this Chapter, overhead facilities may be installed and maintained for a period, not to exceed ten days, without authority of the Board of Supervisors in order to provide emergency service. The Board of Supervisors may grant special permission, on such terms as the Board may deem appropriate, in cases of unusual circumstances, without discrimination as to any person or utility, to erect, construct, install, maintain, use or operate poles, overhead wires and associated overhead structures.
(3)
Other exceptions. This Chapter and any resolution creating a district, unless otherwise provided in such resolution, does not apply to the following types of facilities:
a.
Any County facilities or equipment installed under the supervision and to the satisfaction of the Chief Building Official.
b.
Poles or electroliers used exclusively for street lighting.
c.
Overhead wires (exclusive of supporting structures) crossing any portion of a district within which overhead wires have been prohibited, or connecting to buildings on the perimeter of a district, when such wires originate in an area from which poles, overhead and associated overhead structures are not prohibited.
d.
Poles, overhead wires and associated overhead structures used for the transmission of electric energy at nominal voltages in excess of 34,500 volts.
e.
Overhead wires attached to the exterior surface of a building by means of a bracket or other fixture and extending from one location on the building to another location on the same building or to an adjacent building without crossing any public street.
f.
Antennae, associated equipment and, supporting structures used by a utility for furnishing communication services.
g.
Equipment appurtenant to underground facilities, such as surface mounted transformers, pedestal-mounted terminal boxes and meter cabinets, and concealed ducts.
h.
Temporary poles, overhead wires and associated overhead structures used or to be used in conjunction with construction projects.
(a)
Public hearing by Board of Supervisors. The Board of Supervisors may from time to time call public hearings to ascertain whether the public necessity, health, safety or welfare requires the removal of poles, overhead wires and associated overhead structures within designated areas of the County and the underground installation of wires and facilities for supplying electric, communication, or similar or associated service. The County Clerk shall notify all affected property owners as shown on the last equalized assessment roll and utilities concerned by mail of the time and place of such hearings at least ten days prior to the date thereof. Such hearing shall be open to the public and may be continued from time to time. At each such hearing all persons interested shall be given an opportunity to be heard. The decision of the Board of Supervisors shall be final and conclusive.
(b)
Board of Supervisors may designate by resolution. If after any such public hearing the Board of Supervisors finds that the public necessity, health, safety or welfare requires such removal and such underground installation within a designated area, the Board of Supervisors shall, by resolution, declare such designated area an underground utility district and order such removal and underground installation. Such resolution shall include a description of the area comprising such district and shall fix the time within which such removal and underground installation shall be accomplished and within which affected property owners must be ready to receive underground service. A reasonable time shall be allowed for such removal and underground installation, having due regard for the availability of labor, materials and equipment necessary for such removal and for the installation of such underground facilities as may be occasioned thereby.
(c)
Notice to property owners and utility companies.
(1)
Within ten days after the effective date of a resolution creating a district; the County Clerk shall notify all affected utilities and all persons owning real property within the district created by said resolution or the adoption thereof. Said County Clerk shall further notify such affected property owners of the necessity that, if they or any person occupying such property desire to continue to receive electric, communication, or similar or associated service, they or such occupant shall provide all necessary facility changes on their premises so as to receive such service from the lines of the supplying utility or utilities of a new location, subject to applicable rules, regulations and tariffs of the respective utility or utilities on file with the County
(2)
Notification by the County Clerk shall be made by mailing a copy of the resolution together with a copy of this Chapter, to affected property owners as such are shown on the last equalized assessment roll and to the affected utilities.
(a)
Utility companies. If underground construction is necessary to provide utility service within an established district, the supplying utility shall furnish that portion of the conduits, conductors, and associated equipment required to be furnished by it under its applicable rules, regulations and tariffs on file with the Commission.
(b)
Property owners.
(1)
Every person owning, operating, leasing, occupying or renting a building or structure within a district shall allow to be constructed and provide that portion of the service connection on his or her property between the facilities under responsibility of the utility companies and the termination facilities on or within said building or structure being served, all in accordance with applicable rules, regulations and tariffs of the respective utility or utilities on file with the Commission, and within the ordinances and regulations of the County of Yuba. If the above is not accomplished by any person within the time provided for in the resolution establishing the district, the Chief Building Official shall give notice in writing to the person in possession of such premises, and a notice in writing to the owner thereof as shown on the last equalized assessment roll to provide the required underground facilities within ten days after receipt of such notice.
(2)
The notice to provide the required underground facilities may be given either by personal service or by mail. In case of service by mail, the notice must be deposited in the United States mail in a sealed envelope with postage prepaid, addressed to the person in possession of such premises, and the notice must be addressed to the owner thereof as such owner's name appears, and must be addressed to such owner's last known address as the same appears on the last equalized assessment roll. If notice is given by mail, such notice shall be deemed to have been received by the person to whom it has been sent within 48 hours after the mailing thereof. If notice is given by mail to either the owner or occupant of such premises, the Chief Building Official shall, within 48 hours after the mailing thereof, cause a copy thereof, printed on a card not less than eight inches in size, to be posed in a conspicuous place on said premises.
(3)
The notice given by the Chief Building Official to provide the required underground facilities shall be particularly specific that work is required to be done, and shall state that if said work is not completed within 30 days after receipt of such notice, the Chief Building Official will provide such required underground facilities, in which case the cost and expense thereof will be assessed against the property benefited and become a lien upon such property.
(4)
If upon the expiration of the 30-day period, the said required underground facilities have not been provided, the Chief Building Official shall forthwith proceed to do the work provided, however, if such premises are unoccupied and no electric or communication services are being furnished thereto, the Chief Building Official shall in lieu of providing the required underground facilities, have the authority to order the disconnection and removal of any and all overhead service wires and associated facilities supplying utility service to said property. Upon completion of the work by the Chief Building Official, he or she shall file a written report with the Board of Supervisors setting forth the fact that the required underground facilities have been provided and the cost thereof, together with a legal description of the property against which such cost is to be assessed. The Board of Supervisors shall thereupon fix a time and place for hearing protests against the assessment of the cost of such work upon such premises, which said time shall not be less than ten days thereafter.
(5)
The Chief Building Official shall forthwith, upon the time for hearing such protests having been fixed, give a notice in writing to the person in possession of such premises, and a notice in writing thereof to the owner thereof, in the manner hereinabove provided for the giving of the notice to provide the required underground facilities, of the time and place that the Board of Supervisors will pass upon such report and will hear protests against such assessment. Such notice shall also set forth the amount of the proposed assessment.
(6)
Upon the date and hour set for the hearing of protests, the Board of Supervisors shall hear and consider the report and all protests, if there be any, and then proceed to affirm, modify or reject the assessment.
(7)
If any assessment is not paid within five days after its confirmation by the Board of Supervisors, the amount of the assessment shall become a lien upon the property against which the assessment is made by the Chief Building Official, and the Chief Building Official is directed to turn over to the County Clerk Recorder a notice of lien on each of said properties on which the assessment has not been paid and said Assessor and Tax Collector shall add the amount of said assessment to the next regular bill for taxes levied against the premises upon which said assessment was not paid. Said assessment shall be due and payable at the same time as said property taxes are due and payable, and if not paid when due and payable, shall bear interest at the rate of six percent per annum.
(c)
County. The County shall remove at its own expense all County-owned equipment from all poles required to be removed hereunder in ample time to enable the owner or user of such poles to remove the same within the time specified in the resolution establishing the district.
In the event that any act required by this Chapter or by resolution cannot be performed within the time provided on account of shortage of materials, war, restraint by public authorities, strikes, labor disturbances, civil disobedience, or any other circumstances beyond the control of the actor, then the time within which such act will be accomplished shall be extended for a period equivalent to the time of such limitation.
(a)
To implement state legislation (Government Code Section 65915 et seq.) intending that density bonuses and other incentives contribute significantly to the economic feasibility of housing that is affordable to the types of household and qualifying residents identified in Section 11.30.040 (Qualifying Projects). If any provision of this Chapter conflicts with state law, the latter shall control. Applicable statutes shall be consulted for amendments prior to applying the provisions in this Chapter. The County reserves the right to review applications for a density bonus in accordance with state density bonus law.
(b)
To provide both owner-occupied and rental housing units that are affordable to all households, particularly to those of very low, lower, moderate-income families, and senior citizens in a manner that will protect the health, safety, and general welfare of the residents of Yuba County.
The density bonuses and incentives contained in this Chapter shall apply to housing developments eligible for a density bonus under state density bonus law. This Chapter shall be applicable to all zoning districts that permit residential uses. When an applicant seeks a density bonus for a housing development or for the donation of land for housing within the County that meets the requirements set out in California Government Code Section 65915, the actions and procedures set out in this Chapter shall apply. The density bonus provisions of California Government Code Sections 65915 et seq., as may be amended from time to time, are incorporated by reference into this Chapter.
(a)
The granting of a density bonus shall not require a General Plan amendment, Zoning Map amendment, Zoning Code amendment, or other discretionary approval. If approval of the base units in the project (without the bonus units) requires discretionary review that shall be conducted without considering the bonus units.
(b)
Application fees shall be collected in accordance with Section 11.57.040. If an application for a density bonus requires an unusual amount or specialized type of study or evaluation by County staff, consultant or legal counsel, County staff shall estimate the cost thereof and require the applicant to pay an additional fee or make one or more deposits to pay such cost before the study or evaluation is begun. On completion of the study or evaluation, and before the Board of Supervisors decides the application, County staff shall determine the actual cost of the work and the difference between the actual cost and the amount paid by the applicant and shall require the applicant to pay any deficiency or shall refund to the applicant any excess.
(c)
A proposal for the waiver or reduction of development standards shall neither reduce nor increase the number of incentives or concessions to which the applicant is entitled pursuant to Government Code Section 65915(d).
(d)
The developer may locate the density bonus units in areas on the project site other than where the units for the lower-income households are located in the housing project.
(e)
The development shall conform to all lot area, yard, building height and set back, sign, wall and fence, landscaping and sidewalk, and parking standards contained in the underlying zone, except as listed in Section 11.30.110(1).
(f)
The development shall be connected to and served by a publicly owned and operated sanitary sewer system, piped community water system and storm water drainage facilities.
(g)
The County shall, within 90 days of receipt of a written proposal, notify the housing developer of the County's preliminary response and schedule a meeting with the applicant to discuss the proposal and the County's preliminary response (Government Code Section 65915.5(d)).
(h)
Decisions are final unless an appeal is filed pursuant to the procedures of Section 11.53.150, Appeals and Calls for Review.
(a)
Density bonuses are available to affordable housing developers for developments with five or more dwelling units in accordance with this Chapter for the following:
(1)
Housing developments that include a minimum affordable housing component (Section 11.30.050 and Section 11.30.140(A)).
(2)
Housing developments that include a minimum affordable housing component and a childcare facility (Section 11.30.060).
(3)
Senior citizen housing developments (Section 11.30.070).
(4)
Land donations for very low-income housing (Section 11.30.080).
(5)
One hundred percent affordable housing development, except that up to 20 percent of the total units in the development may be for moderate-income households (Section 11.030.100).
(b)
For the purpose of calculating a density bonus, the residential units must be on contiguous sites that are the subject of one development application, but do not have to be based upon individual subdivision maps or parcels (Government Code Section 65915(i)).
(a)
As demonstrated in Table 11.30.050-1, the amount of density bonus to which the applicant is entitled shall vary according to the amount by which the percentage of affordable housing units exceeds the percentages below. The applicant may also elect to accept a lesser percentage of density bonus.
(b)
Density bonus units authorized by this Chapter shall not be included when determining the number of target units required to qualify for a density bonus.
(c)
All density calculations resulting in fractional units shall be rounded up to the next whole number.
(d)
For a housing development set to be 100-percent affordable to lower-income households, exclusive of managers' units, refer to Section 11.30.100.
(a)
A density increase may be granted provided that all of the following criteria are met:
(1)
Compliance with Section 11.30.040 (Government Code Section 65915(h)(1)).
(2)
The housing development must include a childcare facility that will be located on the premises of, as part of, or adjacent to, the housing development (Government Code Section 65915(h)(1)).
(3)
Approval of the housing development must be conditioned to ensure that both of the following occur:
a.
The childcare facility must remain in operation for a period of time that is as long as or longer than the period of time during which the affordable units are required to remain affordable, pursuant to Section 11.30.130(b) (Government Code Section 65915(h)(2)(A)).
b.
Of the children who attend the childcare facility, the children of very low-income households, low-income households, or moderate-income households must equal a percentage that is equal to or greater than the percentage of dwelling units that are required under the respective minimum affordable housing component income category for which the density bonus is sought (Government Code Section 65915(h)(2)(B)).
(4)
The County has not made a finding based upon substantial evidence that the community has adequate childcare facilities (Government Code Section 65915(h)(3)).
(b)
If the requirements of Subsection 11.30.060(a) are met, then an applicant for a housing development with an affordable housing component and childcare facility is entitled to:
(1)
A density bonus pursuant to Section 11.30.050 (Density Bonus Allowance for Housing Development with Affordable Housing Component); and
(2)
An additional density bonus that is an amount of square feet of residential space that is equal to or greater than the amount of square feet in the childcare facility (Government Code Section 65915(h)(1)(A)).
An applicant for a senior citizen housing development or a mobile home park that limits residency based on age requirements for housing for older persons pursuant to Civil Code Sections 798.76 or 799.5 is entitled to a density bonus of 20 percent of the number of senior citizen housing development units and up to a maximum of 50 percent (Government Code Section 65915(b)(1)(C) and (f)(3)).
(a)
For a density bonus for a qualified land donation to be granted pursuant to Subsection 11.30.080(b), all the requirements of this Section must be met.
(1)
The applicant must be applying for a tentative subdivision map, parcel map, or other residential development approval (Government Code Section 65915(g)(1)).
(2)
The application must include at least a ten percent minimum affordable housing component for very low-income households (Government Code Section 65915(g)(1)).
(3)
The applicant must agree to donate and transfer qualified land, which is land that meets both the following criteria:
a.
The developable acreage and zoning classification of the land being transferred must be sufficient to permit construction of units affordable to very low-income households in an amount not less than ten percent of the number of residential units of the proposed development pursuant to Section 8116-2.5.1(a) (Government Code Section 65915(g)(2)(B)).
b.
The transferred land must be at least one acre in size or of sufficient size to permit development of at least 40 units, have the appropriate General Plan land use designation, be appropriately zoned with development standards for development at the density described in Government Code Section 65583.2(c)(3), and is or will be served by adequate public facilities and infrastructure (Government Code Section 65915(g)(2)(C)).
(4)
The qualified land must be transferred to the County or to a housing developer approved by the County. The County may require the applicant to identify and transfer the land to an approved housing developer (Government Code Section 65915(g)(2)(F)).
(5)
The qualified land must have all of the permits and approvals, other than Building Permits, necessary for the development of the very low-income housing affordable units on the qualified land, not later than the date of approval of the final subdivision map, parcel map, or residential development application filed. However, the County may subject the proposed development to subsequent design review to the extent authorized by Government Code Section 65583.2(i) if the design is not reviewed by the County prior to the time of transfer (Government Code Section 65915(g)(2)(D)).
(6)
The qualified land must be donated and transferred no later than the date of approval of the final subdivision map, parcel map, or residential development application (Government Code Section 65915(g)(2)(A)).
(7)
The qualified land and the affordable units must be subject to a deed restriction ensuring continued affordability of the units consistent with Section 11.30.060 (Allowed Density Bonus for Housing Development with Affordable Housing Component and Childcare Facility) or Section 11.30.100 (Allowed Density Bonus for 100-Percent Affordable Housing Development), which must be recorded against the qualified land at the time of the transfer (Government Code Section 65915(g)(2)(E)).
(8)
The qualified land must be within the boundary of the proposed development or, if the County agrees, within 0.25 mile of the boundary of the proposed development (Government Code Section 65915(g)(2)(G)).
(9)
A proposed source of funding for the very low-income household units must be identified not later than the date of approval of the final subdivision map, parcel map, or residential development application (Government Code Section 65915(g)(2)(H)).
(b)
If the requirements of Subsection 11.30.080(a) are satisfied, the applicant shall be entitled to at least a 15-percent increase above the otherwise maximum allowable residential density for the entire development, as follows in Table 11.30.80-1 (Government Code Section 65915(g)(1)):
A floor area ratio density bonus may be granted to an eligible housing development, upon request of the developer, in lieu of a density bonus awarded on the basis of dwelling units per acre.
(1)
In calculating the floor area ratio bonus pursuant to this Section, the allowable gross residential area in square feet shall be the product of all of the following amounts:
a.
The allowable residential base density in dwelling units per acre.
b.
The site area in square feet, divided by 43,560.
c.
2,250.
(2)
The County Board of Supervisors shall not impose any parking requirement on an eligible housing development in excess of 0.1 parking spaces per unit that is affordable to persons and families with a household income equal to or less than 120 percent of the area median income and 0.5 parking spaces per unit that is offered at market rate.
(3)
An applicant seeking to develop an eligible residential development shall be allowed to calculate impact fees based on square feet, instead of on a per-unit basis.
(4)
If an eligible housing development is zoned for mixed-use purposes, any floor area ratio requirement under a zoning ordinance or land use element of the General Plan applicable to the nonresidential portion of the eligible residential development shall continue to apply, notwithstanding the award of a floor area ratio bonus in accordance with this Section.
(5)
An applicant for a floor area ratio bonus may also submit to the County a proposal for specific incentives or concessions, pursuant to Section 11.30.130.
(a)
A density bonus shall be provided to a developer who agrees to construct a housing development in which 100 percent of the total units, including total units and density bonus units, exclusive of managers' units, are for lower-income households. Up to 20 percent of the total units may be designated moderate-income households.
(b)
A housing development that meets these criteria shall receive the following density bonus:
(1)
If not within a half-mile of a major transit stop: 80 percent.
(2)
If located within a half-mile of a major transit stop: No maximum controls on density.
The following additional incentives or concessions requested by an applicant shall be granted provided the developer agrees to construct affordable housing units in accordance with Section 11.30.040 unless the County makes the necessary findings contained in Government Code Subsection 65915(d), (i).
(1)
Affordable housing incentives. Government Code subsections 65915(d), (j), (k) and (l) govern the following provisions regarding affordable housing incentives.
a.
Subject to Section 11.30.110(3) (Criteria for Denial of Application for Incentives), all of the following applicable requirements must be satisfied to be granted an incentive(s) pursuant to Subsection 11.30.110(1)(a) and Section 11.30.110(2) (Number of Incentives Granted):
1.
The applicant for an incentive must also be an applicant for a density bonus and qualify for a density bonus pursuant to Section 11.30.040 (Government Code Section 65915(d)(1)).
2.
A specific written proposal for an incentive(s) must be submitted with the application for density bonus (Government Code Section 65915(b)(1) and (d)(1)).
3.
If an incentive(s) pursuant to Section 11.30.110 is sought, the applicant must establish that each requested incentive would result in identifiable, financially sufficient, and actual cost reductions for the qualified housing development (Government Code Section 65915(k)(1) and (3)).
4.
If an incentive(s) pursuant to Section 11.30.110 is sought, the applicant must establish that requirements of that section are met (Government Code Section 65915(k)(2)).
5.
If an additional incentive for a childcare facility is sought pursuant to Subsection 11.30.060(b), the applicant must establish that requirements of that section are met (Government Code Section 65915(h)(1)(B)).
6.
The granting of an incentive shall not be interpreted, in and of itself, to require a General Plan Amendment, zoning change, or other discretionary approval (Government Code Section 65915(j)). An incentive is applicable only to the project for which it is granted. An applicant for an incentive may request a meeting with the County and, if requested, the County will meet with the applicant to discuss the proposal (Government Code Section 65915(d)(1)).
b.
For the purposes of this Chapter, "incentive" means any of the following:
1.
A reduction in site development standards or a modification of Development Code requirements or design guidelines that exceed the minimum building standards approved by the California Building Standards Commission, as provided in Part 2.5 (commencing with Section 18901) of Division 13 of the Health and Safety Code, including, but not limited to, a reduction in setback and square footage requirements and in the ratio of vehicular parking spaces that would otherwise be required that results in identifiable, financially sufficient, and actual cost reductions (Government Code Section 65915(k)(1)).
2.
Approval of mixed-use zoning in conjunction with the qualified housing development if commercial, office, industrial, or other land uses will reduce the cost of the qualified housing development and if the commercial, office, industrial, or other land uses are compatible with the qualified housing development and the existing or planned development in the area where the proposed qualified housing development will be located (Government Code Section 65915(k)(2)).
3.
Other regulatory incentives proposed by the affordable housing developer or the County that result in identifiable, financially sufficient, and actual cost reductions (Government Code Section 65915(k)(3)).
4.
Nothing in this Section limits or requires the provision of direct financial incentives by the County for the qualified housing development, including the provision of publicly owned land, or the waiver of fees or dedication requirements (Government Code Section 65915(1)).
(2)
Number of incentives granted. Subject to Section 11.30.110(c) (Criteria for Denial of Application for Incentives), the applicant who meets the requirements of Section 11.30.040 shall receive the following number of incentives and as shown in Table 11.30.110-1.
a.
One incentive for qualified housing development projects that include at least 5 percent for very low-income households, at least ten percent of the total units for lower-income households, or at least ten percent for persons and families of moderate-income households in a common interest development (Government Code Section 65915(d)(2)(A)).
b.
Two incentives for qualified housing development projects that include at least ten percent for very low-income households, at least 17 percent of the total units for low-income households, or at least 20 percent for persons and families of moderate-income households in a common interest development (Government Code Section 65915(d)(2)(B)).
c.
Three incentives for qualified housing development projects that include at least 15 percent for very low-income households, at least 24 percent of the total units for lower-income households, or at least 30 percent for persons and families of moderate-income households in a common interest development (Government Code Section 65915(d)(2)(C)).
d.
Four incentives or concessions for qualified housing development projects that include 100 percent affordable units, except that up to 20 percent of the total units in the development may be for moderate-income households. If the project is located within one-half mile of a major transit stop, the project is also eligible to receive a height increase of up to three additional stories, or 33 feet.
e.
A qualified housing development proposal that includes a childcare facility shall be granted an additional incentive that contributes significantly to the economic feasibility of the construction of the childcare facility (Government Code Section 65915(h)(1)(B)).
(3)
Criteria for denial of application for incentives. Except as otherwise provided in this Chapter or by state law, if the requirements of Section 11.30.110(a) are met, the County shall grant the incentive(s) that are authorized by Section 11.30.110 unless a written finding, based upon substantial evidence, is made with respect to any of the following, in which case the County may refuse to grant the incentive(s):
a.
The incentive is not required to provide affordable housing costs or affordable rents for the affordable units subject to the qualified housing development application (Government Code Section 65915(d)(1)(A)).
b.
The incentive would have a specific, adverse impact, as defined in Government Code Section 65589.5(d)(2), upon the public health and safety or the physical environment or on any real property that is listed in the California Register of Historical Resources and for which there is no feasible method to satisfactorily mitigate or avoid the specific, adverse impact without rendering the development unaffordable to low- and moderate-income households (Government Code Sections 65915(d)(1)(B) and 65915 (d)(3)).
c.
The incentive would be contrary to state or federal law (Government Code Section 65915(d)(1)(C)).
d.
The community has adequate childcare facilities, in which case the additional incentive for a childcare facility, pursuant to Subsection 11.30.060, may be denied (Government Code Section 65915(h)(3)).
(4)
Requirements for waiver or modification of development standards.
a.
To qualify for a waiver or reduction of one or more development standards, the applicant must submit a written application (together with an application for a qualified housing development) that states the specific development standard(s) sought to be modified or waived and the basis of the request (Government Code Section 65915(e)(1)). An applicant for a waiver or modification of development standard(s) pursuant to this Section may request a meeting with the County to review the proposal. If requested, the County shall meet with the applicant (Government Code Section 65915(e)(1)). An application for the waiver or reduction of development standard(s) pursuant to this Section shall neither reduce nor increase the number of incentives to which the applicant is entitled pursuant to Section 11.30.110(b) (Government Code Section 65915(e)(2)).
b.
All of the following findings must be made for each waiver or reduction requested:
1.
The development standard for which a waiver or reduction is requested will have the effect of physically precluding the construction of the proposed qualified housing development at the densities or with the incentives permitted under this Chapter (Government Code Section 65915(e)(1)).
2.
The requested waiver or reduction of a development standard will not have a specific, adverse impact, as defined in Government Code Section 65589.5(d)(2), upon the health, safety, and/or physical environment or, if such a specific, adverse impact exists, there is a feasible method to satisfactorily mitigate or avoid the specific, adverse impact (Government Code Section 65915(e)(1)).
3.
The requested waiver or reduction of a development standard will not have an adverse impact on any real property that is listed in the California Register of Historical Resources (Government Code Section 65915(e)(1)).
4.
The requested waiver or reduction of a development standard is not contrary to state or federal law (Government Code Section 65915(e)(1)).
c.
If the requirements of Subsection 11.30.110(d)(1) and (2) are satisfied, the application for waiver or modification of development standard(s) shall be granted, and the County shall not apply a development standard that will have the effect of physically precluding the construction of a qualified housing development at the densities or with the incentives permitted by this Chapter (Government Code Section 65915(e)(1)).
A housing development that receives a waiver from any maximum controls on density shall only be eligible for a waiver or reduction of development standards pursuant to Section 11.30.110(d)(1) and (2) unless the County agrees to additional waivers or reductions of development standards (Government Code Section 65915(e)(3)).
(a)
Parking standard modifications pursuant to Subsection 11.30.120(b) are available only for qualified housing developments. An application for parking standard modifications stating the specific modification requested pursuant to Subsection 11.30.120(b) must be submitted with the qualified housing development application (Government Code Section 65915(p)(3)).
(b)
The maximum parking requirements, inclusive of parking for persons with a disability and guests, of a development meeting the criteria of Section 11.25.020 shall not exceed the following ratios if the applicant requests the use of such alternative standards:
(1)
Zero to one bedroom: one on-site parking space.
(2)
Two to three bedrooms: one and one-half on-site parking spaces.
(3)
Four or more bedrooms: two and one-half parking spaces.
(c)
If the total number of parking spaces required for a development is other than a whole number, the number shall be rounded up to the next whole number.
(d)
For purposes of this subsection, a development may provide "on-site parking" through tandem parking or uncovered parking, but not through on-street parking.
(e)
Exceptions. Upon request of the applicant, the following maximum parking standards shall apply, inclusive of parking for persons with a disability and guest parking, to the entire housing development subject to this Chapter, as required by Government Code Section 65915(p)(2):
(1)
A maximum of one-half parking spaces per bedroom shall apply when all the following conditions apply:
a.
The development includes at least 20 percent low-income units or at least 11 percent very low-income units provided for in Section 11.30.050 (Density Bonus Allowance for Housing Development with Affordable Housing Component). The development is located within one-half mile of a major transit stop, as defined in subdivision (b) of Section 21155 of the Public Resources Code, and there is unobstructed access to the major transit stop from the development.
(2)
No parking ratio shall apply when all of the following conditions apply:
a.
The development consists solely of rental units, exclusive of a manager's unit or units, with an affordable housing cost to lower-income families, as provided in Section 50052.5 of the Health and Safety Code and the development meets either of the following criteria:
1.
The development is located within one-half mile of a major transit stop and there is unobstructed access to the major transit stop from the development.
2.
The development is a for-rent housing development for individuals who are 62 years of age or older that complies with Sections 51.2 and 51.3 of the Civil Code and the development has either paratransit service or unobstructed access, within one-half mile, to fixed bus route service that operates at least eight times per day.
b.
The development consists solely of rental units, exclusive of a manager's unit or units, with an affordable housing cost to lower-income families, as provided in Section 50052.5 of the Health and Safety Code, and the development is either a special-needs housing development, as defined in Section 51312 of the Health and Safety Code, or a supportive housing development, as defined in Section 50675.14 of the Health and Safety Code. A development that is a special-needs housing development shall have either paratransit service or unobstructed access, within one-half mile, to fixed bus route service that operates at least eight times per day.
(f)
If the total number of parking spaces required for the qualified housing development is other than a whole number, the number shall be rounded up to the next whole number. For purposes of this Section, "on-site parking" may be provided through tandem parking or uncovered parking, but not through on-street parking (Government Code Section 65915(p)(2)).
(g)
Except as otherwise provided in this Section, all other provisions of Chapter 11.25.040 (Parking Space Requirements) applicable to residential development apply.
(h)
An applicant may request additional parking incentives beyond those provided in this Section if applied for pursuant to Section 11.30.110 (Government Code Section 65915(p)(3)).
(i)
Notwithstanding allowances in Subsection 11.30.120(c), if the County or an independent consultant has conducted an area-wide or jurisdiction-wide parking study in the last seven years, then the County may impose a higher vehicular parking ratio not to exceed the ratio described previously in Subsection 11.30.120(b), based on substantial evidence found in the parking study that includes, but is not limited to, an analysis of parking availability, differing levels of transit access, walkability to transit services, the potential for shared parking, the effect of parking requirements on the cost of market-rate and subsidized developments, and the lower rates of car ownership for low and very low-income individuals, including seniors and special-needs individuals. The County shall pay the costs of any new study. The County shall make findings, based on a parking study completed in conformity with this paragraph, supporting the need for the higher parking ratio.
(a)
Project design and phasing. Projects seeking an affordable housing benefit pursuant to this Chapter must comply with the following requirements, unless otherwise specified in writing by the County:
(1)
Location/dispersal of units. Affordable units shall be reasonably dispersed throughout the development where feasible and shall contain, on average, the same (or greater) number of bedrooms as the market-rate units.
(2)
Phasing. If a project is to be developed in phases, each phase must contain the same or substantially similar proportion of affordable units and market-rate units.
(3)
Exterior appearance. The exterior appearance and quality of the affordable units must be similar to the market-rate units. The exterior materials and improvements of the affordable units must be similar to, and architecturally compatible with, the market-rate units.
(b)
Application requirements. An application for one or more affordable housing benefits must be submitted as follows:
(1)
Each affordable housing benefit requested must be specifically stated in writing on the application form provided by the County.
(2)
The application must include the information and documents necessary to establish that the requirements of this Chapter are satisfied for each affordable housing benefit requested, including:
a.
For density bonus requests, that the requirements of Section 11.30.040 are met;
b.
For incentive requests, that the requirements of Section 11.30.110 are met;
c.
For development standard waiver or modification requests, that the requirements of Section 11.30.110.(4) are met; and/or
d.
For parking standard modification requests, that the requirements of Section 11.30.120 are met.
(3)
The application must be submitted concurrently with a complete application for a qualified housing development. When notifying the applicant for a density bonus whether the application is complete, the County shall also notify the applicant of the amount of density bonus for which the applicant is eligible, and if requested by the applicant, the parking ratio for which the applicant is eligible.
(4)
If the applicant requests incentives or concessions, or waivers or reductions of development standards, the County will now also be required to notify the applicant whether the applicant has provided adequate information for the County to make a determination as to those incentives, concessions, or waivers or reductions of development standards.
(5)
The application must include a site plan that complies with and includes the following:
a.
For senior citizen housing development projects, the number and location of proposed total units and density bonus units.
b.
For all qualified housing development projects other than senior citizen housing development projects, the number and location of proposed total units, affordable units, and density bonus units. The density bonus units shall be permitted in geographic areas of the qualified housing development other than the areas where the affordable units are located (Government Code Section 65915(i)).
c.
The location, design, and phasing criteria required by Subsection 11.30.130(a), including any proposed development standard(s) modifications or waivers pursuant to Section 11.30.110(4).
(6)
The application for a qualified housing development must state the level of affordability of the affordable units and include a proposal for compliance with Section 11.30.140 for ensuring affordability.
(7)
If a density bonus is requested for a qualified land donation pursuant to Section 11.30.080, the application must show the location of the qualified land in addition to including sufficient information to establish that each requirement in Section 11.30.080 has been met.
(8)
If an additional density bonus or incentive is requested for a childcare facility pursuant to Section 11.30.060 and/or Subsection 11.30.110(2), the application shall show the location and square footage of the childcare facility in addition to including sufficient information to establish that each requirement in Section 11.30.060 and/or Subsection 11.30.110(2) has been met.
(c)
An application for an affordable housing benefit under this Chapter will not be processed until all of the provisions of this Section are complied with as determined by the County and shall be processed concurrently with the application for the qualified housing development project for which the affordable housing benefit is sought. Prior to the submittal of an application for a qualified housing development, an applicant may submit to the County a preliminary proposal for affordable housing benefits.
(d)
The County shall adjust the amount of density bonus and parking ratios awarded based on any changes to the project during the course of development.
(e)
Determination on density bonus and affordable housing incentive program requirements. The decision-making body for the underlying qualified housing development application is authorized to approve or deny an application for an affordable housing benefit in accordance with this Chapter.
(1)
Affordable housing benefit determinations. An application for an affordable housing benefit shall be granted if the requirements of this Chapter are satisfied, unless:
a.
The application is for an incentive for which a finding is made in accordance with Section 11.30.110(3); or
b.
The underlying application for the qualified housing development is not approved independent of and without consideration of the application for the affordable housing benefit.
(2)
Affordable housing benefit compliance provisions. To ensure compliance with this Chapter and state law, approval of an application for an affordable housing benefit may be subject to, without limitation:
a.
The imposition of conditions of approval to the qualified housing development, including imposition of fees necessary to monitor and enforce the provisions of this Chapter;
b.
An affordable housing agreement and, if applicable, an equity-sharing agreement pursuant to Section 11.30.140; and
c.
Recorded deed restriction implementing conditions of approval and/or contractual or legally mandated provisions.
(3)
A decision regarding an affordable housing benefit application is subject to the appeal provisions of Section 11.53.150 (Appeals and Calls for Review).
(a)
General requirements. The County shall require the execution of an affordability agreement with the affordable housing developer, or its designee approved in writing by the County, as a condition of approval. The County may designate a qualified administrator or entity to administer the provisions of this Section on behalf of the County. The affordable housing agreement shall be recorded prior to, or concurrently with, final map recordation or, where the qualified housing development does not include a map, prior to issuance of a Building Permit for any structure on the site. The County is hereby authorized to enter into the agreements authorized by this Section on behalf of the County upon approval of the agreements by County Counsel for legal form and sufficiency. Said agreement shall be in the form provided by the County to include, but not be limited to, the following:
(1)
Term of agreement necessary to implement state law and this Section.
(2)
Description of project, including location, number of total units (including bedrooms), and number of reserved affordable units (including bedrooms).
(3)
Standards for qualifying household incomes and maximum rents or sale prices.
(4)
Process used to certify tenant income.
(5)
Description of how vacancies will be marketed and filled.
(6)
Enforcement mechanisms restricting reserved affordable units upon sale or transfer.
(7)
Process used to monitor and enforce affordability of reserved units.
(b)
Low or very low-income minimum affordable housing component or senior citizen housing development.
(1)
The affordable housing developer of a qualified housing development based upon the inclusion of low-income and/or very low-income affordable units must enter into an agreement with the County to maintain the continued affordability of the affordable units for 55 years (for rental units) or 30 years (applies to for-sale units), or a longer period if required by the construction or mortgage financing assistance program, mortgage insurance program, or rental subsidy program, as follows (Government Code Section 65915(c)(1)). The agreement shall establish specific compliance standards and specific remedies available to the County if such compliance standards are not met. The agreement shall, among other things, specify the number of lower-income affordable units by number of bedrooms; standards for qualifying household incomes or other qualifying criteria, such as age; standards for maximum rents or sales prices; the person responsible for certifying tenant or owner incomes; procedures by which vacancies will be filled and units sold; required annual report and monitoring fees; restrictions imposed on lower-income affordable units on sale or transfer; and methods of enforcing such restrictions.
(2)
Rental units. Rents for the low-income and very low-income affordable units that qualified the housing development for the density bonus pursuant to Section 11.30.040 shall be set and maintained at an affordable rent (Government Code Section 65915(c)(1)). The agreement shall set rents for the lower-income density bonus units at an affordable rent, as defined in California Health and Safety Code Section 50053. The agreement shall require that owner-occupied units be made available at an affordable housing cost, as defined in the Health and Safety Code Section 50052.5.
(3)
For-sale units. Owner-occupied low-income and very low-income affordable units that qualified the housing development for the density bonus pursuant to Section 11.30.040 shall be available at an affordable housing cost (Government Code Section 65915(c)(1)). The affordable housing developer of a qualified housing development based upon a very low- or low-income minimum affordable component shall enter into an equity-sharing agreement with the County or developer. The agreement shall be between the County and the buyer or the developer and the buyer if the developer is the seller of the unit. The County shall enforce the equity sharing unless it is in conflict with the requirements of another public funding source or law (Government Code Section 65915(c) (2)). The equity-sharing agreement shall include, at a minimum, the following provisions:
a.
Upon resale, the seller of the unit shall retain the value of any improvements, the down payment, and the seller's proportionate share of appreciation. The County shall recapture any initial subsidy, as defined in subparagraph (b), and its proportionate share of appreciation, as defined in subparagraph (c), which amount shall be used within five years for any of the purposes described in subdivision (e) of Section 33334.2 of the Health and Safety Code that promote homeownership.
b.
For purposes of this Section, the County's initial subsidy shall be equal to the fair-market value of the home at the time of initial sale minus the initial sale price to the very low-income household, plus the amount of any down payment assistance or mortgage assistance. If upon resale the market value is lower than the initial market value, then the value at the time of the resale shall be used as the initial market value.
c.
For purposes of this subdivision, the County's proportionate share of appreciation shall be equal to the ratio of the County's initial subsidy to the fair-market value of the home at the time of initial sale.
(4)
Senior units. At least 35 senior-citizen housing development units are maintained and available for rent or sale to senior citizens, as defined in Civil Code Section 51.3.
(c)
Moderate-income minimum affordable housing component.
(1)
The affordable housing developer of a qualified housing development based upon the inclusion of moderate-income affordable units in a common interest development must enter into an agreement with the County ensuring that:
a.
The initial occupants of the moderate-income affordable units that are directly related to the receipt of the density bonus are persons and families of a moderate-income household.
b.
The units are offered at an affordable housing cost (Government Code Section 65915(c)(2)).
(2)
The affordable housing developer of a qualified housing development based upon a moderate-income minimum affordable component shall enter into an equity-sharing agreement with the County or developer (Government Code Section 65915(c)(2)). The agreement shall be between the County and the buyer or the developer and the buyer if the developer is the seller of the unit. The County shall enforce the equity-sharing agreement unless it is in conflict with the requirements of another public funding source or law (Government Code Section 65915(c)(2)). The equity-sharing agreement shall include, at a minimum, the following provisions:
a.
Upon resale, the seller of the unit shall retain the value of improvements, the down payment, and the seller's proportionate share of appreciation. The County shall recapture any initial subsidy, as defined in subparagraph (b), and its proportionate share of appreciation, as defined in subparagraph (c), which amount shall be used within five years for any of the purposes described in Health and Safety Code Section 33334.2(e) that promote homeownership (Government Code Section 65915(c)(2)(A)).
b.
The County's initial subsidy shall be equal to the fair-market value of the unit at the time of initial sale minus the initial sale price to the moderate-income household, plus the amount of any down payment assistance or mortgage assistance. If upon resale the market value is lower than the initial market value, then the value at the time of the resale shall be used as the initial market value (Government Code Section 65915(c)(2)(B)).
c.
The County's proportionate share of appreciation shall be equal to the ratio of the County's initial subsidy to the fair market value of the unit at the time of initial sale (Government Code Section 65915(c)(2)(C)).
(3)
Minimum affordable housing component and childcare facility. If an additional density bonus or incentive is granted because a childcare facility is included in the qualified housing development, the affordable housing agreement shall also include the affordable housing developer's obligations pursuant to Subsection 11.30.060(a)(3) for maintaining a childcare facility, if not otherwise addressed through conditions of approval.
(d)
One hundred-percent affordable housing development.
(1)
At least 20 percent of the units, including both base density and density bonus units, in a qualified housing development shall be restricted to an affordable rent, as defined in Section 50053 of the Health and Safety Code, for at least 55 years.
(2)
The remaining units may be rented at an amount consistent with the maximum rent levels for a housing development that receives an allocation of state or federal low-income housing tax credits from the California Tax Credit Allocation Committee.
(a)
Requirements for density bonus or incentive for condominium conversion projects.
(1)
Applicant to convert apartments to a condominium project agrees to provide at least:
a.
33 percent of the total units of the proposed condominium project to persons and families of moderate-income households, or
b.
15 percent of the total units of the proposed condominium project to persons and families of low-income households.
(2)
If applicant agrees to pay for the reasonably necessary administrative costs incurred by the County pursuant to this Section, the County shall either:
a.
Grant a density bonus; or
b.
Provide other incentives of equivalent financial value (Government Code Section 65915.5(a)).
(b)
Definition of density bonus for condominium conversion projects. If the requirements of Subsection 11.30.150(a) are met, then the condominium conversion project will be entitled to an increase in units of 25 percent over the number of apartments, to be provided within the existing structure or structures proposed for conversion from apartments to condominiums (Government Code Section 65915.5(b)).
(c)
Pre-submittal preliminary proposals for density bonus or incentive for condominium conversion projects. Prior to the submittal of a formal request for subdivision map approval or other application for necessary discretionary approvals, an applicant to convert apartments to a condominium project may submit to the County a preliminary proposal for density bonus or other incentives of equivalent financial value.
(d)
Application for density bonus or incentives for condominium conversion projects. An applicant must submit a completed application provided by the County for a density bonus or for other incentives of equivalent financial value. The application must be submitted concurrently with the application for the condominium conversion project. The application must include the following:
(1)
All information and documentation necessary to establish that the requirements of Subsection 11.30.150(a) are met.
(2)
The proposal for a density bonus or the proposal for other incentives of equivalent financial value.
(3)
Site plans demonstrating the location of the units to be converted, the affordable units, the market-rate units, and the density bonus units in the condominium conversion project.
(4)
Any other information and documentation requested by the County to determine if the requirements of Subsection 11.30.150(a) are met.
(e)
Both the application for a density bonus or other incentives of equivalent financial value and the application for the condominium conversion must be complete before the application for a density bonus or other incentives of equivalent financial value will be considered.
(f)
Granting density bonus or incentive for condominium conversion projects.
(1)
Approval.
a.
If the requirements of Subsection 11.30.150(a) are met, the decision-making body for the condominium conversion project application is authorized to grant an application for a density bonus or other incentives of equivalent financial value, subject to Subsection 11.30.150(f)(2).
b.
Reasonable conditions may be placed on the granting of a density bonus or other incentives of equivalent financial value that are found appropriate, including, but not limited to, entering into an affordable housing agreement pursuant to Section 11.30.140 (Affordable Housing Agreement and Equity- Sharing Agreement), which ensures continued affordability of units to subsequent purchasers who are persons and families of moderate-income households or low-income households (Government Code Section 65915.5(a)).
(2)
Ineligibility. An applicant shall be ineligible for a density bonus or other incentives of equivalent financial value if the apartments proposed for conversion constitute a qualified housing development for which a density bonus, as defined in Section 11.30.040 (Qualifying Projects) or other incentives were provided (Government Code Section 65915.5(f)).
(3)
Decision on condominium conversion project. Nothing in this Section shall be construed to require the County to approve a proposal to convert apartments to condominiums (Government Code Section 65915.5(e)).
(a)
Occupancy. Prior to occupancy of an affordable unit, the household's eligibility for occupancy of the affordable unit must be demonstrated to the County. This provision applies throughout the restricted time periods pursuant to Section 11.30.140 (Affordable Housing Agreement and Equity-Sharing Agreement) and applies to any change in ownership or tenancy, including subletting, of the affordable unit.
(b)
Ongoing compliance. Upon request, the affordable housing developer must show that the affordable units are continually in compliance with this Chapter and the terms of the affordable housing agreement. Upon 30-day notice, the County may perform an audit to determine compliance with this Chapter and the terms of any agreement or restriction.
(c)
Enforcement. The County has the authority to enforce the provisions of this Chapter, the terms of affordable housing agreements and equity-sharing agreements, deed restrictions, covenants, resale restrictions, promissory notes, deed of trust, conditions of approval, permit conditions, and any other requirements placed on the affordable units or the approval of the qualified housing development. In addition to the enforcement powers granted in this Chapter, the County may, at its discretion, take any other enforcement action permitted by law, including those authorized by County ordinances. Such enforcement actions may include, but are not limited to, a civil action for specific performance of the restrictions and agreement(s), damages for breach of contract, restitution, and injunctive relief. The remedies provided for herein shall be cumulative and not exclusive and shall not preclude the County from seeking any other remedy or relief to which it otherwise would be entitled under law or equity.
This Chapter is intended to permit continuation of uses and continued occupancy and maintenance of structures that were legally established but do not comply with all of the current standards and requirements of this Code in a manner that does that does not impair public health, safety, or general welfare or conflict with the General Plan. These regulations also distinguish between non-conforming uses that are detrimental to public health, safety, or general welfare and those uses that are economically productive and compatible with surrounding development despite being inconsistent with applicable regulations and requirements.
(a)
The provisions of this Chapter apply to any lawfully established use or structure, as defined in the following section. Non-conforming uses and structures may only be continued, altered, or enlarged subject to the requirements of this Chapter.
(b)
The provisions of this Chapter also apply to non-conforming lots. Non-conforming lots may be developed according to the provisions of Section 11.31.040(c), Development on Non-conforming Lots.
(c)
Nothing contained in this Code shall be deemed to require any change in the plans, construction, or designated use of any building or structure for which a building permit has properly been issued, in accordance with the ordinances then in effect and upon which actual construction has been started prior to the effective date of this Code, provided that in all such cases, actual construction shall be diligently carried on until completion of the building or structure.
(a)
Definition. Any use, structure, or lot that was lawfully established prior to the adoption of this Code or any subsequent amendment to this Code or to the Official Zoning Map but that does not comply with all of the current standards and requirements of this Code shall be considered lawful non-conforming.
(1)
Non-conforming use. This term means any use of land or property that was lawfully established in compliance with all applicable ordinances and laws at the time of establishment and has remained in continuous existence but is not a use listed as permitted, accessory, or allowed subject to approval of a use permit in the district in which it is located. Non-conforming uses also include uses made non-conforming by the addition of a development standard (e.g., floor area limitation, restriction to certain floor level, minimum separation requirement) previously not required for such use, where such added standard is specified to be a condition of the use.
(2)
Non-conforming structure. This term means any building or structure that was lawfully established and in compliance with all applicable ordinances and laws at the time of establishment but no longer complies with all applicable development standards of the district in which it is located.
(3)
Non-conforming lot. Any lot that is smaller than the minimum lot area, width, depth, or frontage required by this Code shall be considered a lawful non-conforming lot if it is described in the official records on file in the office of the Yuba County Recorder as a lot of record.
(b)
Non-conformities. Non-conforming status for a use or structure may result from any inconsistency with the requirements of this Code, including but not limited to location, density, floor area, height, yards, usable open space, performance standards, or the lack of an approved conditional use permit, variance, or other required authorization.
(1)
Exceptions. A use or structure shall not be deemed non-conforming solely because it does not conform with the parking dimension standards, loading space requirements, planting area, or screening regulations of the district in which it is located or does not conform to the standards for the following building features: garage door location; garage door width; chimney height; cornices, eaves, and other ornamental features that exceed maximum projections into required yards.
(c)
Development on non-conforming lots. A non-conforming lot may be used as a building site subject to compliance with all applicable development standards (e.g., setbacks, height, etc.) of the district in which it is located. Deviations to standards shall not be allowed unless a variance, waiver, or modification to such standards is approved as provided for in this Code.
(a)
Non-conforming uses. Any lawful non-conforming use may be continued and maintained, provided that there be no alteration, enlargement, or addition to any building or structure housing the use; no increase in occupant load; nor any enlargement of the area, space, or volume occupied by or devoted to such use, except as otherwise provided in this Chapter. The right to continue a non-conforming use shall run with the land. No substitution, expansion, or other change in use is permitted except as provided in this Chapter.
(b)
Non-conforming structures. Any lawful non-conforming building or structure may be continued and maintained provided that there be no alteration, enlargement, or addition to the building or structure except as otherwise provided in this Chapter. The right to continue a non-conforming structure shall run with the land.
(c)
New development on a lot with a non-conforming use or structure. New development, including accessory structures, may occur on a lot with a non-conforming use or structure provided the new development conforms to the regulations of this Code and that such development does not alter any existing non-conforming structure or increase the degree of non-conformity.
Lawful non-conforming structures may be continued, maintained, and repaired in compliance with the requirements of this Section unless deemed to be a public nuisance because of health or safety conditions.
(1)
Maintenance and non-structural repairs. Maintenance, non-structural repairs and non-structural interior alterations are permitted to a non-conforming structure as long as the changes and improvements do not enlarge or extend the structure.
(2)
Structural repairs. Structural repairs that do not enlarge or extend the structure, including modification or repair of bearing walls, columns, beams, or girders, may be undertaken only if the Building Official determines that such modification or repair is immediately necessary to protect public health and safety, occupants of the non-conforming structure, or occupants of adjacent property, and if the cost of such work does not exceed 50 percent of the higher of the assessed value of the non-conforming structure as determined by the Yuba County Assessor or an appraisal performed by a certified appraiser for the applicant. If an applicant chooses not to submit an appraisal, the County Assessor's determination shall be used.
(3)
Non-conforming signs. Lawfully established signs that do not conform to the requirements of this Code may only be maintained in compliance with the requirements of Chapter 11.27, Signs.
Non-conforming structures may be altered, enlarged or extended if the addition conforms to the regulations applicable to the district where it is located and that such alterations or additions do not extend any existing non-conformity or increase the degree of non-conformity.
(1)
No expansion of area occupied by non-conforming use. An alteration to a non-conforming building or structure containing a non-conforming use shall not increase the area occupied by any non-conforming use, except as otherwise provided in Section 11.31.080, Expansion of Non-conforming Uses.
(2)
Accessory dwelling units. An Accessory Dwelling Unit in compliance with Section 11.32.030, Accessory Dwelling Units, may be developed on a lot that contains a non-conforming Single-Unit Dwelling.
(3)
Non-conforming signs. Lawfully established signs that do not conform to the requirements of this Code may only be altered in compliance with the requirements of Chapter 11.27, Signs.
A lawful non-conforming building or structure that is damaged or partially destroyed by fire, explosion, earthquake, or natural disaster that is not caused by an act or deliberate omission of a property owner, an owner's agent, or a person acting in concert with or on behalf of an owner may be restored or rebuilt subject to the following provisions:
(1)
Restoration when damage is 50 percent or less of value. If the cost of repair or reconstruction does not exceed 50 percent of the replacement cost, as determined by the Building Official, of the building or structure, replacement of the damaged portions of the building is allowed by right provided that the replaced portions are the same size, extent, and configuration as previously existed.
(2)
Restoration when damage exceeds 50 percent of value. If the cost of repair or reconstruction exceeds 50 percent of the replacement cost, as determined by the Building Official, of the building or structure, the land and building shall be subject to all of the requirements of this Code, except as provided below.
a.
Non-Residential structures. The Planning Commission may approve a Conditional Use Permit for the structure to be rebuilt to the same size, extent, and configuration as previously existed. In such cases any expansion or change to the previous structure must conform to the requirements of this Code.
b.
Residential structures. Any non-conforming residential structure may be reconstructed, restored, or rebuilt up to the size and number of dwelling units prior to the damage. The non-conforming use, if any, may be resumed subject to a Zoning Clearance in the case of Single-Unit Dwellings or a Conditional Use Permit approval in the case of other residential housing types, unless the decision-making authority finds that:
1.
The reconstruction, restoration, or rebuilding will be detrimental or injurious to the health, safety, or general welfare of persons residing or working in the neighborhood, or will be detrimental or injurious to property and improvements in the neighborhood; or
2.
The existing non-conforming use of the building or structure can be more appropriately moved to a zoning district where the use is permitted.
(3)
Building code compliance. Any reconstruction, restoration, or rebuilding undertaken pursuant to this Section shall conform to all applicable Building Code requirements.
(4)
Building permit. A building permit must be obtained within two years after the date of the damage or destruction.
No lawful non-conforming use may be expanded without the approval of a use permit, subject to the following requirements:
(1)
Within a conforming structure. A non-conforming use occupying a portion of a structure that conforms to this Code may expand the portion that it occupies with approval of a Use Permit in accord with Chapter 11.57, Use Permits.
(2)
Expansion within a structure that does not conform to this Code. A non-conforming use in a structure that does not conform to the requirements of this Code but does conform to the requirements of the Building Code may expand its occupancy and building floor area subject to approval of a Use Permit in accordance with Chapter 11.57, Use Permits, provided, however, that the expansion meets the requirements of this Code.
(3)
Expansion within a structure that does not conform to the Building Code. Any non-conforming use in a structure that does not conform to the Building Code may not expand the area it occupies until and unless the structure is brought into conformance with all applicable Building Code requirements.
No lawful non-conforming use shall be changed to a different use type or sub-classification without the approval of a use permit unless the new use is permitted by right. This requirement does not apply to a change of ownership, tenancy, or management where the new use is of the same use type and use classification, if applicable, as the previous use, as defined in Chapter 11.72, Use Classifications, and the use is not expanded or intensified.
(1)
Change from non-conforming to permitted use. Any non-conforming use may be changed to a use that is allowed by right in the district in which it is located and complies with all applicable standards for such use.
(2)
Addition of permitted uses and structures. Any parcel with a non-conforming use or structure may add new uses and structures that are permitted within the zone district so long as they meet all applicable development standards. Non-conforming residential uses that also have a commercial use located within the residential unit shall comply with the requirements of Section 11.32.140, Home Occupations.
(3)
Absence of permit. Any use that is non-conforming solely by reason of the absence of a use permit may be changed to a conforming use by obtaining a use permit pursuant to the requirements in Chapter 11.57, Use Permits.
(4)
Substitutions. The Zoning Administrator may allow substitution of a non-conforming use with another non-conforming use, subject to approval of a minor use permit. In addition to any other findings required by this Code, the Administrator must find that:
a.
The existing non-conforming use was legally established;
b.
The proposed new use would not preclude or interfere with implementation of the General Plan or any applicable adopted specific, area, or community plan;
c.
The proposed new use will not depress the value of nearby properties or create conditions that would impede their redevelopment or use in compliance with the General Plan;
d.
The proposed new use will be no less compatible with the purposes of the district and surrounding uses that comply with the requirements of this Code than the non-conforming use it replaces;
e.
The proposed new use will not be detrimental to the health, safety, peace, comfort, or general welfare of persons residing or working in the surrounding area or be detrimental or injurious to property and improvements of adjacent lots, the surrounding area, or the neighborhood because of noise, odors, dust, glare, vibrations, or other effects; and
f.
The proposed new use will comply with all applicable standards of this Code, there are special circumstances peculiar to the property and its relation to surrounding uses or to the district itself that would justify modification to applicable standards, or the impacts of the new use will be mitigated.
No non-conforming use may be resumed, reestablished, reopened or replaced by any other non-conforming use after it has been abandoned or vacated for a period of six months, unless the Planning Commission approves a conditional use permit after making all the following findings in addition to any other required findings.
(1)
The structure cannot be used for any conforming use because of its original design or because of lawful structural changes made for a previous non-conforming use;
(2)
The structure can be reasonably expected to remain in active use for a period of 20 years without requiring repairs or maintenance in excess of 50 percent of the replacement cost of the structure, as defined in this article, within any five year period; and
(3)
The continuation of the use or structure will not be incompatible with or detrimental to surrounding conforming uses.
The purpose of this Chapter is to establish standards for specific uses that are permitted or conditionally permitted in several or all districts. These provisions are supplemental standards and requirements intended to minimize the impacts of these uses on surrounding properties and protect the health, safety, and welfare of their occupants and of the general public.
The uses addressed in this Chapter shall be located only where allowed by the regulations of Division II, Zoning and Overlay Districts. The uses shall comply with any applicable standards for the district(s) in which they are located, as well as the standards of this Chapter. In the case of a conflict, the most stringent requirements apply.
(a)
Purpose. This Section establishes regulations and procedures for reviewing and permitting Accessory Dwelling Units through a ministerial process consistent with state law.
(b)
Applicability.
(1)
Applicable to all. Any construction, establishment, alteration, enlargement, or modification of an accessory dwelling unit or a junior accessory dwelling unit shall comply with the requirements of this Section and the County's building and fire codes. An accessory dwelling unit or junior accessory dwelling unit that conforms to the standards of this Section shall not be:
a.
Deemed to be inconsistent with the General Plan designation and zone for the parcel on which the accessory dwelling unit or junior accessory dwelling unit is located.
b.
Deemed to exceed the allowable density for the parcel on which the accessory dwelling unit or junior accessory dwelling unit is located.
c.
Considered in the application of any County ordinance, policy, or program to limit residential growth.
d.
Required to correct a nonconforming zoning condition, as defined in Chapter 11.72 (Use Classifications). This does not prevent the County from enforcing compliance with applicable building standards in accordance with Health and Safety Code Section 17980.12.
(2)
Accessory dwelling units. Accessory dwelling units are allowed on parcels zoned for single-family or multifamily residential uses where such a parcel includes a proposed or existing dwelling.
(3)
Junior accessory dwelling units. Junior accessory dwelling units are allowed on parcels zoned for single-family residential uses where such a parcel includes an existing single-family dwelling.
(c)
Permits and approval.
(1)
Ministerial action. Approval or denial of an Accessory Dwelling Unit or Junior Accessory Dwelling Unit is a ministerial action and subject to compliance with the standards in this Section and all other applicable codes.
(2)
Building permit. All accessory dwelling units or junior accessory dwelling units shall require a building permit, subject to all the standard application and processing fees and procedures that apply to building permits generally. No other planning-related permit is required.
(3)
The County shall issue a building permit within 60 calendar days from the date on which the County received a completed application, unless either:
a.
The applicant requests a delay, in which case the 60-day time period is put on hold for the period of the requested delay; or
b.
The application to create an Accessory Dwelling Unit or Junior Accessory Dwelling Unit is submitted with an application to create a new single-unit primary dwelling on the parcel. The City may delay acting on the permit application for the Accessory Dwelling Unit or Junior Accessory Dwelling Unit until the City acts on the permit application to create the new single-unit primary dwelling.
(d)
Types. An accessory dwelling unit approved under this Chapter shall be one of the following types:
(1)
Attached. An accessory dwelling unit that is created as a result of new construction that is attached to an existing or proposed primary dwelling, such as through a shared wall, floor, or ceiling. An attached accessory dwelling unit can also be constructed within an existing or proposed primary dwelling.
(2)
Detached. An accessory dwelling unit that is created in whole or in part from newly constructed space that is detached or separated from the primary dwelling. The detached accessory dwelling unit shall be located on the same parcel as the proposed or existing primary dwelling. Detached includes a second-story addition above an existing detached garage.
(3)
Converted. An accessory dwelling unit that meets the following requirements:
a.
Is located within the proposed or existing primary dwelling or accessory structure, including, but not limited to, attached garages, storage areas, or similar uses; or an accessory structure, including, but not limited to, studio, pool house, detached garage, or other similar structure. Such conversion may include an expansion of not more than 150 square feet beyond the same physical dimensions as the existing structure if the expansion is for the sole purpose of accommodating ingress and egress to the converted structure.
b.
The proposed conversion of a structure into an accessory dwelling unit that does not satisfy the requirements of Subsection (c)(i) of this Section shall either be defined by the director as an attached accessory dwelling unit, a detached accessory dwelling unit, or a junior accessory dwelling unit, or shall be defined as an accessory structure and not an accessory dwelling unit.
(4)
Junior accessory dwelling unit. A junior accessory dwelling unit is a unit that meets all of the following characteristics:
a.
Is no more than 500 square feet in size and is contained entirely within a single-unit primary dwelling. A junior accessory dwelling unit may include separate sanitation facilities or may share sanitation facilities with the existing structure.
b.
Is located and contained entirely within a proposed single-unit primary dwelling or entirely within an existing single-unit primary dwelling.
c.
Has a separate entrance from the main entrance to the proposed or existing single-unit dwelling.
d.
Has a bathroom that is either shared with or separate from those of the primary dwelling.
e.
Includes an efficiency kitchen.
(e)
Number of accessory dwelling units per lot or parcel in zones which allow single-family homes. The following number of accessory dwelling units apply in all Zoning Districts that allow single-family homes as a permitted use:
(1)
One attached or detached accessory dwelling unit shall be allowed on a parcel with one proposed or existing primary dwelling.
(2)
One junior accessory dwelling unit shall be allowed on a parcel with one proposed or existing primary dwelling.
(3)
Up to one attached or detached accessory dwelling unit and one junior accessory dwelling unit shall be allowed on a single parcel.
(f)
Type and number of accessory dwelling units per lot or parcels which allow multifamily homes. The following apply to accessory dwelling units in all Zoning Districts that allow multifamily homes as a permitted use:
(1)
Attached accessory dwelling units:
a.
At least one attached or up to 25 percent of the existing multifamily units shall be allowed as attached accessory dwelling units in an existing multifamily development.
b.
Attached accessory dwelling units in a multifamily development may be created only through the conversion of parts of existing multifamily dwelling structures that are not used as livable space, including, but not limited to, storage rooms, boiler rooms, passageways, attics, basements, or garages.
(2)
Detached accessory dwelling units. Up to two detached accessory dwelling units shall be allowed on a parcel with one or more multifamily structures, subject to compliance with the development standards for detached accessory dwelling units in this Chapter.
(g)
Attached or converted accessory dwelling unit development standards.
(1)
Location, size, setbacks, and height: The following standards apply to attached accessory dwelling units:
a.
Location. Shall be located on the same lot or parcel as a primary dwelling. An attached accessory dwelling unit can be created by converting a portion of an existing primary dwelling, by constructing a new primary dwelling with an integral accessory dwelling unit, or by constructing an addition to an existing primary dwelling.
b.
Size. The total floor area of an attached accessory dwelling unit shall not exceed 850 square feet for a one-bedroom unit or 1,000 square feet for an accessory dwelling unit that provides more than one bedroom. If there is an existing primary dwelling, the total floor area of an attached accessory dwelling unit shall not exceed 50 percent of the existing primary dwelling, with a maximum increase in floor area of 1,200 square feet. These limits do not include up to 150 square feet of area added to the primary dwelling for the sole purpose of providing access to the accessory dwelling unit.
c.
Setbacks.
1.
None, if existing living area, garage, or other accessory structure is converted to an accessory dwelling unit (or portion of accessory dwelling unit) with the same dimensions as the existing structure.
2.
Five feet from the side and rear lot lines shall be required for an accessory dwelling unit that is constructed above a garage.
d.
Height. Per the zoning district standard for the primary dwelling.
e.
Access. An attached accessory dwelling unit shall have direct exterior access separate from the main entrance to the primary dwelling.
f.
Minimum requirements. An accessory dwelling unit shall include at least one bathroom, one kitchen, and one living/dining room.
g.
Garage allowances. Limited to one attached garage, which shall be limited to 50 percent of the accessory dwelling unit conditioned/unconditioned floor area.
h.
Buildup and underfloor regulations. Buildup/underfloor space areas shall not have any improved floor area. Buildup/underfloor areas shall be limited to one light and one plug and may be used as space for equipment serving the accessory dwelling unit.
(2)
Sale of unit. An accessory dwelling unit may be rented, but it shall not be offered for sale apart from the principal unit, nor shall the lot or parcel be subdivided to create a separate building site unless approved pursuant to the subdivision ordinance of this County. No accessory dwelling unit may be offered for rental terms of less than 30 days for accessory dwelling units permitted on or after January 1, 2020. Notwithstanding Section 11.32.030(i), the County may, by ordinance, allow an accessory dwelling unit to be sold or conveyed separately from the primary residence to a qualified buyer if all the following apply:
a.
The property was built or developed by a qualified nonprofit corporation.
b.
There is an enforceable restriction on the use of the land pursuant to a recorded contract between the qualified buyer and the qualified nonprofit that satisfies all the requirements of paragraph (10) of subdivision (a) of Section 402.1 of the Revenue and Taxation Code.
c.
The property is held pursuant to a recorded tenancy in common agreement that includes all the following provisions:
1.
The agreement allocates to each qualified buyer an undivided, unequal interest in the property based on the size of the dwelling each qualified buyer occupies.
2.
A repurchase option that requires the qualified buyer first offer the qualified nonprofit corporation the opportunity to buy the property if the buyer desires to sell or convey the property.
3.
A requirement that the qualified buyer occupy the property as the buyer's principal residence.
4.
Affordability restrictions on the sale and conveyance of the property that ensure the property will be preserved for low-income housing for 45 years for owner-occupied housing units and will be sold or resold to a qualified buyer.
d.
A grant deed naming the grantor and grantee and describing the property interests being transferred shall be recorded in the County in which the property is located. A Preliminary Change of Ownership Report shall be filed concurrently with this grant deed pursuant to Section 480.3 of the Revenue and Taxation Code.
e.
Notwithstanding any provisions in this Chapter, if requested by a utility providing service to the primary residence, the accessory dwelling unit shall have a separate water, sewer, or electrical connection to that utility.
(h)
Detached accessory dwelling unit development standards.
(1)
Location, size, setbacks, and height. The following standards apply to detached accessory dwelling units:
a.
Location. Shall be located on the same lot or parcel as a primary dwelling and be detached from the primary dwelling unit.
b.
Size. No minimum size, except as needed to conform with the requirements for an efficiency unit, as defined in the Building Code. A detached accessory dwelling unit shall not exceed 850 square feet for a one-bedroom unit or 1,200 square feet for an accessory dwelling unit that provides more than one bedroom. The living area includes all conditioned and unconditioned space in the detached accessory dwelling unit.
c.
Setbacks.
1.
Front yard setback: Per the zoning district standard for the primary dwelling.
2.
Side yard: Four feet minimum.
3.
Rear yard: Four feet minimum.
d.
Height. 16 feet for new structures built specifically as an accessory dwelling unit. Existing structures taller than 16 feet can be converted to an accessory dwelling unit consistent with the requirements of this Chapter.
e.
Minimum requirements. An accessory dwelling unit shall include at least one bathroom, one kitchen, and one living/dining room.
f.
Garage allowances: Limited to one attached garage, which shall be limited to 50 percent of the accessory dwelling unit conditioned/unconditioned floor area.
g.
Buildup and underfloor regulations. Buildup/underfloor space areas shall not have any improved floor area. Buildup/underfloor areas shall be limited to one light and one plug and may be used as space for equipment serving the accessory dwelling unit.
h.
Maximum floor area. The floor area of the Second Dwelling Unit for an attached unit shall not exceed 30 percent of the primary dwelling's living area. In addition, the floor area of a detached Second Dwelling Unit shall not exceed 1,200 square feet. A larger floor area may be permitted upon approval of an Administrative Permit.
(2)
Sale of unit. An accessory dwelling unit may be rented, but it shall not be offered for sale apart from the principal unit, nor shall the lot or parcel be subdivided to create a separate building site unless approved pursuant to the subdivision ordinance of this County. No accessory dwelling unit may be offered for rental terms of less than 30 days for accessory dwelling units permitted on or after January 1, 2020. Notwithstanding Section 11.32.030.(i), the County may, by ordinance, allow an accessory dwelling unit to be sold or conveyed separately from the primary residence to a qualified buyer if all the following apply:
a.
The property was built or developed by a qualified nonprofit corporation.
b.
There is an enforceable restriction on the use of the land pursuant to a recorded contract between the qualified buyer and the qualified nonprofit that satisfies all the requirements of paragraph (10) of subdivision (a) of Section 402.1 of the Revenue and Taxation Code.
c.
The property is held pursuant to a recorded tenancy in common agreement that includes all the following provisions:
1.
The agreement allocates to each qualified buyer an undivided, unequal interest in the property based on the size of the dwelling each qualified buyer occupies.
2.
A repurchase option that requires the qualified buyer first offer the qualified nonprofit corporation the opportunity to buy the property if the buyer desires to sell or convey the property.
3.
A requirement that the qualified buyer occupy the property as the buyer's principal residence.
4.
Affordability restrictions on the sale and conveyance of the property that ensure the property will be preserved for low-income housing for 45 years for owner-occupied housing units and will be sold or resold to a qualified buyer.
d.
A grant deed naming the grantor and grantee and describing the property interests being transferred shall be recorded in the County in which the property is located. A Preliminary Change of Ownership Report shall be filed concurrently with this grant deed, pursuant to Section 480.3 of the Revenue and Taxation Code.
e.
Notwithstanding any provisions in this Chapter, if requested by a utility providing service to the primary residence, the accessory dwelling unit shall have a separate water, sewer, or electrical connection to that utility.
(i)
Junior accessory dwelling unit development standards.
(1)
Location, size, setbacks, height. The following standards apply to junior accessory dwelling units:
a.
Location. Shall be located on the same lot or parcel as a primary dwelling and be attached to the primary dwelling by at least one wall or by a ceiling. The junior accessory dwelling unit may be located above or below the primary dwelling.
b.
Size. Maximum of 500 square feet of living area. Up to 150 square feet of building space may be added to the primary dwelling for the sole purpose of providing access to the junior accessory dwelling unit; this shall not count toward the maximum area for the junior accessory dwelling unit.
c.
Setbacks. If the primary dwelling is expanded to create the junior accessory dwelling unit, the addition may maintain the same setbacks as the existing structure, unless a different setback is required by the Fire or Building codes.
(2)
Access. A junior accessory dwelling unit shall have direct exterior access separate from the main entrance to the primary dwelling.
(3)
Kitchen. Each junior accessory dwelling unit shall include an efficiency kitchen.
(4)
Utilities.
a.
A junior accessory dwelling unit shall not be considered a separate or new dwelling unit for the purposes of calculating connection fees or capacity charges for utilities, including water, sewer, or power service, or impact fees.
b.
No new or separate utility connection between the junior accessory dwelling unit and the utility shall be required, although the property owner may voluntarily install a submeter for the junior accessory dwelling unit.
c.
Any utility charges or fees shall be consistent with state law.
(5)
Parking. No additional off-street parking is required for the junior accessory dwelling unit.
(6)
Garage allowances. Limited to one attached garage, which shall be limited to 50 percent of the accessory dwelling unit conditioned/unconditioned floor area.
(7)
Buildup and underfloor regulations. Buildup/underfloor space areas shall not have any improved floor area. Buildup/underfloor areas shall be limited to one light and one plug and may be used as space for equipment serving the junior accessory dwelling unit.
(8)
Owner-occupancy requirements.
a.
A person with legal or equitable title to the primary dwelling shall reside on the property in either the primary dwelling or junior accessory dwelling unit as that person's legal domicile and permanent residence.
b.
The owner occupancy requirement does not apply if the property is entirely owned by a governmental agency, land trust, or non-profit housing organization.
c.
Prior to issuance of a building permit for a junior accessory dwelling unit, a deed restriction shall be recorded in the chain of title of the primary single-unit property. The form of the deed restriction shall be approved by the City Attorney and shall provide that the junior accessory dwelling units not be sold separately from the primary dwelling.
d.
The deed restriction shall run with the land and shall be enforced against future property owners.
(9)
Connection fee. A connection fee shall not be collected for water, sewer, power, or other utility for a junior accessory dwelling unit.
(10)
Safety requirements. For purposes of fire or life-protection regulations, a junior accessory dwelling unit shall not be considered a separate or new dwelling unit.
(11)
Deed restrictions. Prior to the issuance of a building permit for a junior accessory dwelling unit, the owner of the lot or parcel on which it is to be constructed shall record a deed restriction in a form satisfactory to the County attorney that includes the following:
a.
A prohibition of the sale of the junior accessory dwelling unit separately from the sale of the primary residence, including a statement that the deed restriction may be enforced against future purchasers; and
b.
A restriction on the size and attributes of the junior accessory dwelling unit that conforms with Section 65852.2 of the Government Code that regulates accessory dwelling units.
(12)
Inspections. No subdivision of this Development Code shall be interpreted to prohibit the requirement of an inspection, including the imposition of a fee for that inspection, to determine if a junior accessory dwelling unit complies with applicable development standards.
(j)
Additional standards applicable to all accessory dwelling units.
(1)
Conversion setback. No setback shall be required for an existing living area, garage, or other accessory structure that is converted to an accessory dwelling unit (or portion of accessory dwelling unit) with the same dimensions as the existing structure.
(2)
Certificate of occupancy. The County shall not issue a certificate of occupancy for an accessory dwelling unit before the certificate of occupancy is issued for the primary residence.
(3)
Encroachments. Except as otherwise provided in this Chapter, the accessory dwelling unit shall not increase an existing or create a new encroachment upon any required front, side, or rear yard space; increase building height or coverage beyond the standards prescribed for the district in which it is located; or decrease the distance between structures that is required.
(4)
Passageways and entrances. No passageway or entrance within view of a street shall be required in conjunction with the construction of an accessory dwelling unit.
(5)
Fire sprinklers. Fire sprinklers are not required for accessory dwelling units if they are not required by the building code for the proposed single-family or multifamily residence. Fire sprinklers would not be required for the existing primary structure unless triggered by some other building code or fire code requirement.
(6)
Utility connections. Notwithstanding any provision to the contrary contained in this Code (or in any code adopted by reference in this Code), an accessory dwelling unit may be connected to a district sewerage system through a side sewer shared with the existing residence on the site, or it may have its own side sewer. In either case, the connection of the accessory dwelling unit to the district sewerage system is subject to the requirements of this Chapter 11.32.030, including obtaining applicable permits, paying connection charges (where applicable), and paying user charges. Accessory dwelling units shall not be considered new residential uses for the purposes of calculating connection fees or capacity charges for utilities, including water, sewer, and other utilities as defined, unless the accessory dwelling unit was constructed with a new single-family dwelling. Separate metering of utilities is not required for accessory dwelling units unless they are constructed with a new primary dwelling.
(7)
Well or septic systems. Where a well or septic system is used for the proposed ADU, approval by the Environmental Health Department will be required, as allowed by Government Code Section 65852.2(a)(1)(D)(ix). An on-site sewage treatment, conveyance, and disposal system will be required by the County Code, Chapter 7.07.
(8)
Manufactured housing. Except as otherwise provided in this Chapter, accessory dwelling units shall comply with all uniform building codes adopted, and all other applicable laws, rules, and regulations. An accessory dwelling unit may consist of manufactured housing on a permanent foundation if such housing is permitted in the district in which it is proposed to be located and meets the standards for such housing.
(9)
Permit denial exemption. No other local ordinance, policy, or regulation shall be the basis for the delay or denial of a building permit, administrative use permit, minor-use permit, or conditional use permit.
(10)
Transfer of sale. Any covenant, restriction, or condition contained in any deed, contract, security instrument, or other instrument affecting the transfer or sale of any interest in a planned development, and any provision of a governing document, that either effectively prohibits or unreasonably restricts the construction or use of an accessory dwelling unit or junior accessory dwelling unit on a lot zoned for single-family residential use that meets the requirements of Section 65852.2 or 65852.22 of the Government Code, is void and unenforceable.
(11)
Development fees. Fees will be charged for the construction of accessory dwelling units, in accordance with Chapter 13.50 of the Yuba County Development Code and state law.
a.
The County, special district, or water corporation shall not impose any impact fee upon the development of an accessory dwelling unit less than 750 square feet.
b.
Any impact fees charged for an accessory dwelling unit of 750 square feet or more shall be charged proportionately in relation to the square footage of the primary dwelling unit.
c.
School districts are authorized but do not have to levy impact fees for accessory dwelling unit greater than 500 square feet pursuant to Section 17620 of the Education Code. Accessory dwelling units less than 500 square feet are not subject to school impact fees.
(k)
Code enforcement. The code enforcement officer may conduct a review of accessory dwelling units within the County. The code enforcement officer or designee may enforce all provisions of this Code and provisions of state law pertaining to the development, occupation, and maintenance of residential properties and accessory dwelling units, pursuant to the following provisions:
(1)
Reporting. A code enforcement officer may report:
a.
A change in ownership of the lot or parcel of land on which the residential units are situated.
b.
A change in the occupancy of the residential units that is not in compliance with this Section.
(2)
Violation. A code enforcement officer may issue to an owner of an accessory dwelling unit a notice to correct a violation of any provision of any building standard or any failure to comply with this Section. The code enforcement officer shall include in that notice a statement that the owner of the unit has a right to request a delay in enforcement pursuant to the following findings:
a.
The accessory dwelling unit was built before January 1, 2020.
b.
The accessory dwelling unit was built on or after January 1, 2020; however, at the time the unit was built, the County had a noncompliant accessory dwelling unit ordinance, but the unit is compliant at the time the request is made.
(3)
Violation correction. The owner of an accessory dwelling unit that receives a notice to correct violations or abate nuisances, as described in Section 11.67, may submit an application to the County requesting that enforcement of the violation be delayed for up to five years on the basis that correcting the violation is not necessary to protect health and safety.
a.
The County shall grant an application described in Section 11.67 if it is determined that correcting the violation is not necessary to protect health and safety. In making this determination, the Zoning Administrator shall consult with the code enforcement officer, building official, and/or the State Fire Marshal or designee pursuant to Section 13146 of the Health and Safety Code.
b.
The County shall not approve any applications pursuant to this Section on or after January 1, 2030. However, any delay that was approved by the County before January 1, 2030, shall be valid for the full term of the delay that was approved at the time of the initial approval of the application, pursuant to Section 11.67. If upon such review it appears that in a particular case a violation of the provisions of this Chapter has occurred, the code enforcement officer may take such action as deemed necessary by the County attorney to correct any violation.
(a)
Applicability. Housing for agricultural employees or immediate family of those employed for the exclusive purpose of agricultural pursuits either on the premises or off-site shall be designed, operated and located according to the standards of this Section except as provided below.
(1)
Housing for six or fewer persons. A residential structure providing accommodation for six or fewer persons shall be considered a single-unit residential use and shall be allowed by right in any district that permits single-unit residential uses.
(2)
Residential development in non-agricultural districts. Multi-Unit Residential, Boarding Facility, or Single-Room Occupancy uses located in a non-agricultural district. These housing types, whether designed for and occupied by farm workers or other residents, shall be subject to the same use and development regulations as they otherwise would in the applicable districts.
(b)
Number of housing units allowed. No more than 36 beds in a group quarters or up to 12 dwelling units or spaces designed for use by a single family or household (up to six agricultural employees) are allowed on an individual parcel. The Planning Commission may authorize additional beds or units through a Conditional Use Permit where the Planning Commission makes specific findings that document the necessity for the number of approved units. For sites with a combination of group quarters or individual units the following combinations are permitted without approval of a Conditional Use Permit:
(1)
Eighteen beds and six single household units (50:50 percent); or
(2)
Twenty-seven beds and three single household units (75:25 percent); or
(3)
Nine beds and nine single household units (25:75 percent).
(c)
Development standards.
(1)
Agricultural employee verification. As part of the building permit application, an agricultural employee verification form shall be submitted to the Planning Department. The verification form shall include information regarding the housing type, number of dwelling units or beds, type of residency (permanent, temporary, or seasonal), entity responsible for housing maintenance and upkeep, copy of permit to operate from the California Department of Housing and Community Development if applicable, and notarized statement that the housing is for agricultural employees and their families as defined in the County Code.
(2)
All housing, whether permanent or temporary, shall meet the development standards of the district and be subject to all applicable building, fire, and health codes.
a.
Location. Agricultural employee housing shall be located at least 50 feet from barns, pens or other structures that house livestock. The housing shall be located off of prime and productive agricultural land, unless no other alternative locations exist on the site.
(3)
Housing shall be constructed and maintained to conform to the State Department of Housing and Community Development regulations for employee housing. Housing for five or more agricultural employees is subject to the permitting requirements of the California Housing Employee Act. The property owner shall obtain and maintain all required permits from the California Housing and Community Development (HCD) Department.
(4)
Mobile homes used specifically for such housing shall be maintained in compliance with the applicable requirements of the Manufactured Housing Act (Health and Safety Code Section 18000, et seq.). For purposes of zoning, manufactured homes utilized for agricultural labor housing shall not be considered a mobile home park.
(5)
Temporary housing facilities. The use of tents, recreational vehicles, mobile camping equipment or other temporary facilities approved for human habitation for agricultural employees may be allowed upon approval of an Administrative Use Permit. In addition to the criteria stated above, temporary housing facilities for agricultural employees shall meet the following requirements:
a.
Use of temporary housing facilities is limited to a maximum duration of 90 days per calendar year in one location (cumulative) unless a longer time period is approved through approval of an administrative use permit;
b.
Shall be located a minimum of 100 feet from public rights-of-way, property lines, and season or permanent water ways;
c.
Shall obtain clearances from the Environmental Health Department for the provisions of water; waste water, solid waste; and any proposed food facilities.
It is the intent of the following regulations to keep and maintain domestic, farm/livestock, and exotic animals on their private property in a manner that will protect the health, safety and welfare or nearby residents, and to protect the health, safety, and welfare of animals.
(1)
Regulations pertaining to livestock.
a.
Enclosure location (county-wide). No barn, coop, stable, or corral shall be located closer than 50 feet to any abutting dwelling, except for caretaker quarters and shall be a minimum of 100 feet from any well or year round creek or river.
1.
The raising and keeping of animal livestock is prohibited within the front yards of properties within the valley growth boundary.
b.
Minimum parcel size. Within the valley growth boundary, parcels shall be a minimum of one acre in size.
1.
Educational project exemption. Temporary education projects, including, but not limited to FFA, 4-H, and school projects, conducted by students (living at the subject property) through the twelfth grade plus one year thereafter and under the direct supervision of a qualified, responsible adult advisor or instructor may apply for a waiver to the minimum lot size or zone district which do not otherwise permit the raising and keeping of such animals pursuant to Chapter 11.60, Waivers and Modifications. The Zoning Administrator may only approve a waiver after consultation with the agricultural commissioner and a determination that adverse impacts to neighboring residents are effectively mitigated. Waivers shall be valid for a 12-month period and may be renewed annually.
2.
The raising of animals on a residential parcel located within the valley growth boundary that has not established a primary use is not permitted.
c.
Maximum number of animals. Within the valley growth boundary, the number of animals permitted is based on the zone district, acreage of the site and type of animals calculated by animal unit equivalent.
1.
Animal unit (AU). For purposes of this Code, an animal unit is a unit of measure indicating the ability of land to support a specific density of livestock as well as maintain the intended character of the zone district. For calculation purposes only livestock are counted. See Table 11.32.050-(1)c.1. for animal calculations.
2.
Specific type of animals permitted. The following requirements apply to the keeping or raising of livestock. More than one type of animal may be kept on a single site so long as the number of animal units per acre and maximum number of animal units per parcel is not exceeded. For example a parcel designated as RS that is one acre in size is allowed a total of one animal unit equivalent (1 AU) which could be comprised of one horse (1 AU) or two sheep and 13 chickens (1 AU), or two goats, eight chickens, and eight rabbits (1 AU).
3.
Exceptions. Increases in the maximum number of animal units allowed per acre or parcel may be allowed through approval of a waiver when the increase is less than 25 percent, an Administrative Use Permit for increases up to 50 percent, or a minor conditional use permit for increases greater than 50 percent.
i.
The decision-making authority may only approve an increase in the number of livestock after consultation with the Agricultural Commissioner, Environmental Health Department and a determination that adverse impacts to neighboring residents are effectively mitigated.
4.
Fuel reduction (brush and vegetation). The temporary use of sheep and goats to reduce the amount of on-site brush and vegetation is permitted on sites greater than one acre in size, but shall not exceed a total of two weeks within any 12 month period.
d.
Operation and maintenance standards (county-wide).
1.
Odor and vector control. Except parcels designated as AE or AI, pastures agricultural accessory structures and animal enclosures, including but not limited to pens, coops, cages, barns, corrals, paddocks and feed areas shall be maintained free from excessive litter, garbage and the accumulation of manure, so as to discourage the proliferation of flies, other disease vectors, and offensive odors. Sites shall be maintained in a neat and sanitary manner.
2.
Erosion and sedimentation control. In no case shall any person allow keeping of livestock to cause significant soil erosion, or to produce sedimentation on any public road, adjoining property, or in any drainage channel.
3.
If the keeping of livestock on the site is not maintained in compliance with the provisions of this Section it shall be deemed a public nuisance and may be subject to abatement as set forth in Section 11.67.020, Enforcement of this Code and Titles VII (Health and Sanitation) and VII (Public Peace and Safety) of the County Code.
(2)
Regulations pertaining to outdoor aviaries. Within the valley growth boundary, the keeping of domestic or exotic birds primarily, other than those classified as livestock (game foul and chickens, squab, ostriches, emus, peacocks, turkeys, and similar birds), is permitted pursuant to Table 11.32.050-(2)b. Any species of domestic or exotic bird(s) (except livestock) which is raised or kept inside of a residence is considered a household pet and is otherwise regulated by the provisions in Subsection 11.32.050(6) of this Section. The keeping of imported birds may also require approval by: U.S. Department of Agriculture, Fish and Wildlife Service, U.S. Department of Public Health, California Department of Fish and Wildlife, and/or the California Department of Food and Agriculture, in addition to any approval required by this Code.
a.
Bird classes.
1.
Class 1. Canaries, parakeets, finch and similar small songbirds.
2.
Class 2. Cockatiels, quail, doves, pigeons, and similar types of birds.
3.
Class 3. Cockatoos, parrots and similar types of birds.
b.
Number of birds permitted. Outdoor aviaries are permitted in all agricultural districts and as an incidental and accessory use to a permitted residence when no commercial activity is involved in all applicable zone districts that allow for a residence. The number of birds allowed is based on the net acreage of the parcel the aviary is located on.
c.
Exceptions. Increases in the maximum number of birds is allowed through approval of a waiver when the increase is less than 25 percent, an Administrative Use Permit for increases up to 50 percent, or a Minor Conditional Use Permit for increases greater than 50 percent.
d.
Operation and maintenance standards. The standards specified in Subsection 11.32.050.(1)d. above shall apply to outdoor aviaries.
(3)
Regulations pertaining to apiaries/bee keeping. The keeping of bees shall not be permitted within the valley growth boundary except on existing agricultural properties. Where bees are permitted they are subject to the requirements of the Agricultural Commissioner.
(4)
Regulations pertaining to wild animals (county-wide). The keeping of wild animals shall be limited to wildlife sanctuaries or wildlife rehabilitations facilities. All such facilities shall obtain approval of an administrative use permit and any required licenses from Yuba County Animal Care Services and the California Department of Fish and Wildlife.
(5)
Regulations pertaining to household pets (county-wide). When conducted within the house or within a residential accessory structure on the same site, the keeping of common household pets, including but not limited to: dogs, cats, guinea pigs, hamsters, rabbits, domestic or exotic birds (except livestock breeds), non-poisonous reptiles and amphibians, fish, and/or the keeping of other small domesticated or caged small animals incidental and accessory to a permitted residential use when no commercial activity is involved is permitted in all applicable zone districts.
a.
Operation and maintenance standards.
1.
Odor and vector control. The premises where household pets are kept shall be maintained in a clean and sanitary manner by the removal of waste, litter or garbage, so as to discourage the proliferation of flies, other disease vectors, and offensive odors.
2.
Erosion and sedimentation control. In no case shall any person allow animal keeping to cause significant soil erosion, or to produce sedimentation on any public road, adjoining property, or in any drainage channel. In the event such sedimentation occurs, the keeping of animals outdoors on the site shall be deemed a public nuisance and may be subject to abatement as set forth in Section 11.67.020, Enforcement of this Code and Titles VII (Health and Sanitation) and VII (Public Peace and Safety) of the County Code.
3.
Nuisance declared. Where it is found by the Environmental Health Director that the keeping of household pets in such a number or manner is injurious to the health, safety, or welfare of the inhabitants of the home, the household pets, or adjacent residences, the Environmental Health Director may through written findings declare the keeping of such pets a public nuisance subject to the procedures listed in Chapter 11.67, Enforcement and Abatement Procedures.
4.
Hobby and commercial kennels. Hobby and commercial kennels are also subject to any permits and requirements established by the Environmental Health Department.
b.
Dogs. The keeping of dogs and similar animals (pygmy goats, pot-bellied pigs, etc.) for personal purposes (pets) including the temporary fostering of such animals is permitted in all zone districts that allow for a residence or where guard dogs are permitted. The number of dogs and similar animals permitted is based on the zone district as identified in Table 11.32.050(5)b. of this Chapter. Dogs kept for personal purposes are limited to no more than one litter per 12-month period regardless of the number of dogs owned/permitted. The breeding of dogs in excess of one litter per 12-month period is considered a commercial kennel and is only allowed in those districts that allow for commercial kennels subject to any required permits including but not limited to a kennel permit from the Environmental Health Department.
1.
Dogs over four months of age in excess of the number principally permitted may be allowed as a hobby kennel with approval of an administrative use permit.
2.
The keeping of dogs over four months of age in excess of the number allowed as a hobby kennel will be considered a commercial kennel and is only allowed in those districts that allow for kennels subject to any required permits.
3.
The keeping of dogs and similar animals owned by others, or offering training, grooming, therapy, boarding or other services is considered a commercial kennel or pet service and is only allowed in those districts where kennel, pet grooming, and animal services are listed as a permitted or conditionally permitted use.
4.
Agricultural operations. Dogs used in herding livestock or other permitted agricultural use are excluded from the provisions in Table 11.32.050(5)b. below.
5.
Guard dogs. In non-residential areas, up to two guard dogs are permitted per business establishment. Additional guard dogs may be authorized through a waiver from the Zoning Administrator where it can be demonstrated that additional guard dogs are needed to adequately secure the facility.
(6)
Non-conforming animal keeping. The keeping of types or numbers of animals not allowed in a particular zoning district may be continued provided that:
a.
The number of animals existing on the site was legally permitted prior to the adoption of this Development Code.
b.
The number of animals legally existing on the site on the effective date of this Development Code shall not be increased unless allowed pursuant to the requirements of this Section.
c.
New offspring of legally existing animals may be retained on-site until four months of age or until weaned, after which the new animals are to be removed.
d.
Deceased animals shall not be replaced.
e.
Animals that are relocated to another location for a period greater than 90 days shall not be replaced or brought back to the non-conforming site.
f.
Owners of non-conforming animals shall also be subject to the management practices of this Chapter.
Automobile/vehicle sales and service establishments shall be located, developed and operated in compliance with the following standards:
(1)
Landscaping and screening. Within the valley growth boundary, landscaping and screening shall be provided as follows:
a.
A masonry wall at least six feet in height shall be provided along all lot lines adjacent to a residential district for parcels located in the valley growth boundary.
b.
A landscaped planter with a minimum inside width of eight feet and enclosed within a six-inch-high curb shall be provided along the front and street side property lines, except for vehicular circulation openings. A landscaping buffer with a minimum inside width of at least six feet shall be provided along all other property lines that abut a residential district.
(2)
Application review and findings for approval. The decision-making authority shall only approve an automobile/vehicle sales and service facility if it finds that:
a.
The project is designed so that form and scale are harmonious and consistent with the character of the specific site, the adjacent uses and structures, and the surrounding neighborhood.
b.
The site design, including the location and number of driveways, will promote safe and efficient on-site and off-site traffic circulation.
c.
Service bay openings are designed to minimize the visual intrusion on surrounding streets and properties.
d.
Lighting is designed to be low-profile, indirect or diffused and to avoid adverse impacts on surrounding uses.
e.
The washing facility will not have an adverse impact on water supply and quality.
(3)
Conditions of approval. Conditions of approval may include limitations on operational characteristics of the use; restrictions on outdoor storage and display, location of pump islands, canopies and service bay openings; and/or requirements for buffering, screening, lighting, planting areas, or other site elements, in order to avoid adverse impacts on adjacent lots or the surrounding area.
(4)
Automobile/vehicle sales and leasing. Automotive servicing or repair is permitted as an accessory use for automobile/vehicle dealers that offer maintenance and servicing of the type of vehicles sold on site.
(5)
Automobile/vehicle service and repair, major and minor. Major and minor automobile/vehicle service and repair uses, as well as any other uses, such as auto dealerships or service stations, that perform auto servicing as an accessory activity, are subject to the following standards:
a.
Noise. All body and fender work or similar noise-generating activity shall be conducted within an enclosed building with sound-attenuating construction to absorb noise. Air compressors and other service equipment shall be located inside a building or enclosure to attenuate noise unto adjacent properties.
b.
Work areas. All work shall be conducted within an enclosed building except: pumping motor vehicle fluids, checking and supplementing various fluids, and mechanical inspection and adjustments not involving any disassembly.
c.
Vehicle storage. Vehicles being worked on or awaiting service or pick-up shall be stored within an enclosed building or in a parking lot on the property that is screened in compliance with Section 11.19.080, Screening.
d.
Litter. The premises shall be kept in an orderly condition at all times. No used or discarded automotive parts or equipment or permanently disabled, junked, or wrecked vehicles may be stored outside a building.
(6)
Automobile/vehicle washing. Automobile/vehicle washing facilities are subject to the following standards:
a.
Washing facilities. No building or structure shall be located within 30 feet of any public street or within 20 feet of any interior property line of a residential use or residential district. Washing facilities are subject to drainage and clean water regulations as determined by the Public Works Department.
b.
Hours of operation. When abutting a residential district, the hours of operation are limited to 8:00 a.m. to 8:00 p.m., seven days a week.
(7)
Service stations. Service stations and any other commercial use that includes fuel pumps for retail sales of gasoline are subject to the following standards:
a.
Pump islands. Pump islands shall be located a minimum of 15 feet from any property line to the nearest edge of the pump island. A canopy or roof structure over a pump island may encroach up to ten feet within this distance.
b.
Abandonment. Any service station shall in the case of abandonment or non-operation of the primary use be dismantled and the site cleared within 12 months subsequent to the close of the last business day.
Private campgrounds and RV parks shall be located, developed, and operated in compliance with following standards:
(1)
Unauthorized camping prohibited. It shall be unlawful to place, maintain, use, or occupy any vehicle or temporary structure, such as a tent, lean-to, or other makeshift enclosure for which no building permit has been issued, on any lot of real property for the purpose of camping, dwelling, maintaining, or establishing a temporary or permanent residency except under the following circumstances:
a.
Properties located outside the valley growth boundary. Property owners camping on their own real property shall be limited to 14 days within any 60-day period.
1.
Refuse and solid waste shall be properly managed in accordance with the requirements of Environmental Health Department and Chapter 7.05 of the County Code, Removal of Refuse.
2.
Burning of refuse is prohibited.
(2)
Compliance with state law. All campgrounds shall comply with the minimum standards of the Special Occupancy Parks Act (Health and Safety Code Section 18860, et seq.) and the applicable regulations adopted by the Department of Housing and Community Development (Code of Regulations, Title 25, Chapter 2.2) including, but not limited to setback and separation standards, infrastructure requirements, operations, maintenance, and inspections within these facilities.
a.
Organized camps meeting the definition of CA Health and Safety Code, Division 13, Part 2.3, Sections 18897—18897.7; and Title 17, Subchapters 6, Sections 30700—30753 of the California Code of Regulations are subject to regulation by the Environmental Health Department. Permits to operate organized camps along with the associated food facility, public swimming pools and public water systems are issued by the Environmental Health Department. Enforcement of building code standards for organized camps will be delegated from the Environmental Health Department to the Building Department.
(3)
Minimum area and density. The minimum area of a campground shall be three acres. A minimum of 50 percent of the total site area shall be left in its natural state or be landscaped. The remaining 50 percent of land is eligible for development. For campgrounds with designated camping areas, each individual campsite or RV space shall be no less than 1,000 square feet. The overnight population per campsite, RV space, or cabin shall not exceed six persons. Occupancy of group sites and cabins will be determined through the use permit based on size and location.
(4)
Fencing. A fence, wall, landscaping screen, earth mound or other screening approved by the Planning Director, or otherwise required by this Code, may be required as needed for public safety. Fencing to delineate campground boundaries may also be permitted, but should be of a design consistent with character of the neighborhood.
(5)
Access. Campground access roads shall have clear and unobstructed access to a public roadway. There shall be no direct access from an individual campsite, RV space, or cabin to a public roadway.
(6)
Trash collection areas. Trash collection areas shall be adequately distributed and enclosed by a six-foot-high landscape screen, solid wall, or fence that is accessible on one side. Bear-resistant garbage can containers may be required.
(7)
Water supply and sewage disposal. Adequate water supply and/or septic capability is available to serve the project, as determined by the County Department of Environmental Health.
(8)
Commercial use. Campgrounds may include minor accessory commercial uses such as recreational equipment rental or general stores subject to use permit approval.
(9)
Length of stay. The maximum length of stay in any campground shall not exceed 21 consecutive days within a 30-day period unless a longer time period is approved through the use permit.
(10)
Structures and recreational facilities. The following standards apply to structures on the site, apart from the personal residence of the property owner or caretaker:
a.
Structures are limited to: restrooms/showers; clubhouse, which may contain one commercial kitchen facility and be used for minor recreational purposes; and, cabins, yurts, and permanent RV trailers for transient occupancy.
b.
Campgrounds may include minor accessory recreational uses or structures such as but not limited to swimming pools and tennis courts.
Caretaker residences shall be located, developed, and operated in compliance with following standards:
(1)
Accessory use. A caretaker residence is intended for sites that do not allow a single-unit dwelling by right. The caretaker residence must be accessory to a primary use that requires a caretaker for security purposes or for continuous supervision or care of people, plants, animals, equipment, or other conditions on site. See also agricultural labor housing and employee housing.
(2)
Number of units. A maximum of one caretaker residence is permitted per site.
(3)
Occupancy. At least one of the occupants of the caretaker residence shall be the owner or lessee, or an employee of the owner or lessee of the site.
(4)
Location. A caretaker residence shall be located on the same lot as the primary use it serves. It may be located within or attached to a building on the site or as a detached structure.
(5)
Compliance with building standards.
a.
All housing, whether permanent or temporary, shall meet the development standards for the zone and be subject to all applicable building, fire, and health codes.
b.
Permanent housing shall be constructed and maintained to conform to State Department of Housing and Community Development regulations for employee housing (Health and Safety Code Section 17000 et seq.).
c.
Mobile homes and recreational vehicles used specifically for such housing shall be maintained in compliance with the applicable requirements of the Manufactured Housing Act (Health and Safety Code Section 18000 et seq.).
(6)
Removal of housing unit. A caretaker residence shall remain in use concurrent with the existence of the use that justifies the housing unit. Upon termination of the allowed primary use, the caretaker residence shall be removed if a temporary structure, or converted to another allowed use if a permanent structure.
Drive-in or drive-thru facilities shall be located, developed and operated in compliance with the following standards:
(1)
Where allowed. Drive-in and drive-thru facilities are allowed, subject to approval of a zoning clearance or in conjunction with a discretionary permit as authorized by the base zone district.
(2)
Drive-in and drive-through aisles. Drive-in and drive-through aisles shall be designed to allow safe, unimpeded movement of vehicles at street access points and within the travel aisles and parking space areas.
(3)
Drive-in and drive-through queue area. Each drive-through aisle shall provide a sufficient queue for four cars, of at least 80 feet, and the queue area shall not interfere with public rights-of-way or streets, or with on- or off-site circulation and parking. The Planning Director may grant exceptions to the queue size based on an interior traffic circulation study.
(4)
Screening. Each drive-through aisle shall be screened with a combination of decorative walls and landscape to a height of 20 inches to prevent headlight glare and direct visibility of vehicles from adjacent streets and parking lots.
(5)
Menu boards. Menu boards shall not exceed 32 square feet in area, with a maximum height of six feet, and shall face away from public rights-of-way unless located at least 35 feet from the street and adequately screened from view. All outdoor speakers shall be directed away from any residential district or residential use.
(6)
Pedestrian walkways. Pedestrian walkways shall not intersect drive-in or drive-through aisles, unless no alternative exists. In such cases, pedestrian walkways shall have clear visibility, emphasized by enhanced paving or markings.
Emergency shelters shall be located, developed, and operated according to the following standards:
(1)
Location. An emergency shelter providing up to 25 beds shall not be required to be more than 300 feet of another Emergency Shelter.
(2)
Length of stay. Occupancy for any one individual in the emergency shelter shall be limited to six months (180 days) within any 12-month period.
(3)
On-site waiting and intake areas. The emergency shelter shall provide on-site waiting and intake areas, such areas shall be located either inside the facility or fully screened from view of the public right-of-way and neighboring properties.
(4)
Hours of operation. Each emergency shelter shall establish and maintain set hours of operation for client intake and discharge. These hours shall be clearly displayed at the entrance to the shelter at all times. The shelter operator shall discourage loitering of clients in the vicinity of the shelter during non-intake hours of operation.
(5)
Staffing. On-site management shall be provided 24 hours a day seven days a week and accompanied by support staff. Only individuals that do not utilize a client bed/or other on-site services are eligible as on-site management.
(6)
Management plan. Prior to commencing operation, the emergency shelter provider must have a written management plan. The management plan must include the following:
a.
Total number of beds provided, including the number of beds, if any, are reserved for persons under the age of 16.
b.
Minimum square footage of personal living space for each resident, the square footage of indoor and outdoor common areas, and the number of bathing/bathroom facilities.
c.
Staffing information including the total number of staff and staffing by shift, provisions for staff training, and contact information for key staff.
d.
Resident identification process and the type of clientele served. Include provisions for dealing with sex offenders and/or parolees.
e.
Description of training, counseling, social services, or other types of services that will be provided on-site. Food related services may require additional permits and/or clearances from the Environmental Health Department.
f.
Policies regarding pets. Kennels may require a permit from the Environmental Health Department. Outdoor Kennels require approval of a Conditional Use Permit when associated with an emergency shelter.
g.
Timing and location of outdoor activities.
h.
Temporary storage of residents' belongings.
i.
Safety and security including lighting.
j.
Site plan, floor plan, and building elevations.
(a)
Applicability. To provide a mechanism for on-site employee housing where the subject business, operation or institution proposing employee housing is in a location where other housing is unavailable, infeasible, or is necessary for the operational characteristics of the business.
(b)
Occupancy. At least one of the occupants of each employee housing unit shall be a full-time employee of the business, operation or institution that qualifies for employee housing pursuant to this Section.
(c)
Location. Employee housing shall be located on the same lot as the primary use it serves, unless an off-site location is approved by the Planning Commission through approval of a minor conditional use permit. A finding shall be made indicating that due to topography, operational characteristics, or other site constraints it is infeasible for the employee housing to be located on the same site as the use requiring the employee housing. In no instance shall the employee housing be located more than one mile from the use requiring the employee housing.
(d)
Number of units: The number of dwelling units designed for single family/households or number of beds in group quarters shall be determined by the decision-making authority. The applicant shall submit documentation demonstrating the number of units/beds necessary for the conduct of the principal use.
(e)
Removal of housing unit. Employee housing may remain in use concurrent with the existence of the use that justifies the housing unit. Upon termination of the allowed primary use, the employee housing shall be removed if a temporary structure, or converted to another allowed use if a permanent structure.
(f)
Development standards.
a.
All housing, whether permanent or temporary, shall meet the development standards of the district and be subject to all applicable building, fire, and health codes.
1.
Location. Employee housing shall be located at least 50 feet from barns, pens or other structures that house livestock.
b.
Mobile homes used specifically for such housing shall be maintained in compliance with the applicable requirements of the Manufactured Housing Act (Health and Safety Code Section 18000, et seq.). For purposes of zoning, manufactured homes utilized for employee housing shall not be considered a mobile home park.
c.
Temporary housing facilities. The use of tents, recreational vehicles, mobile camping equipment or other temporary facilities approved for human habitation for employees may be allowed upon approval of a Minor Conditional Use Permit. In addition to the criteria stated above, temporary housing facilities for employees shall meet the following requirements:
1.
Length of time temporary housing facilities may be used during a calendar year shall be determined through the use permit process;
2.
Shall be located a minimum of 100 feet from public rights-of-way, property lines, and seasonal or permanent water ways;
3.
Shall obtain clearances from the Environmental Health Department for the provisions of water; waste water, solid waste; and any proposed food facilities.
(a)
Number. The number of large family day care homes located along a street frontage are limited to the following:
(1)
One per 1,000 linear feet of street frontage in the residential zones and Plumas Lake Specific Plan.
(2)
One per 2,500 linear feet of street frontage in the AE and AR, zones.
(b)
Parking. Three spaces are in addition to the two off-street spaces for primary residence. Driveways may be utilized to accommodate parking for the day care.
(a)
Limitation in valley growth boundary. In any residential district, farmers' markets may be permitted only on parking lots and other paved areas serving community facilities; schools; or other public or quasi-public uses. Farmers markets in commercial districts may be permitted as special events as identified in Section 11.32.320.
(b)
Limitation in agricultural and rural community districts. Farmer's markets in agricultural districts and rural residential districts that are not located at community facilities or schools may be permitted as part of a ranch marketing operation. Farmers markets in rural commercial zone districts may be permitted as special events as identified in Section 11.32.320.
(c)
Operational standards. Farmers markets shall comply with the following standards:
(1)
The market is operated by one or more certified producers, a nonprofit organization, or a local government agency;
(2)
All producers are authorized by the County Agricultural Commissioner to sell directly to consumers farm products or value-added farm products;
(3)
The market operator and/or producers secure all necessary licenses, certificates and health permits, and all agricultural products meet all pertaining health and safety standards;
(4)
Documentation is provided to show that all standards set forth in this Section are met.
(d)
Hours of operation. Market activities shall be conducted between the hours of 7:00 a.m. and 7:00 p.m., with one hour provided for set-up and one hour for clean-up and take-down.
(e)
Lighting. Any lighting must be shielded so as not to shine directly or indirectly on adjacent property.
(f)
Waste disposal. Adequate composting, recycling, and trash containers shall be provided during hours of operation, and shall be removed from site for appropriate disposal. The site shall be cleaned at the end of each day of operations, including the removal of all stalls and debris.
(g)
Management plan. In instances where a zoning clearance or administrative use permit is required, a management plan shall also be prepared and provided to the review authority, including the following:
(1)
Identification of (a) Market Manager(s), who shall be present during all hours of operation.
(2)
A set of operating rules addressing dates and hours of operation; maintenance; security; refuse collection; and parking.
a.
Site circulation. Market shall not block accessible pathways or parking spaces, public rights-of-way, sidewalks, or impede on-site circulation and parking for either the market or any businesses that are operating on the site.
Home occupations shall be located and operated in compliance with the following standards:
(1)
Terms of use. A home occupation is considered accessory and incidental to a primary residential use.
(2)
Zoning clearance required, not transferable. A zoning clearance or self certification is required for each home occupation, pursuant to the provisions of Chapter 11.55, Zoning Clearances. A zoning clearance to conduct a home occupation at a particular address is not transferable from one party to another, nor may the type of business be modified. A new zoning clearance or self certification must be obtained for each new home occupation.
(3)
Operational and performance standards. Home occupations must be located and operated consistent with the following standards:
a.
No person other than members of the family residing on the premises shall be engaged in such occupation.
b.
Instructional services shall be limited to no more than two students at one time and no more than four lessons/appointments per day.
c.
Personal services such as barbers, beauty salons and nail salons or dog grooming when conducted by appointment only and do not exceed four appointments per day.
d.
Not more than 25 percent of the floor area of the dwelling unit, including attached garages, shall be used in the conduct of the home occupation.
e.
Within the valley growth boundary, no building or space outside of the dwelling unit and attached garage shall be used for home occupation purposes. Any work conducted within a garage shall be done with the garage doors closed. Outside the valley growth boundary, detached garages, workshops and enclosed accessory structures may be utilized as part of the home occupation and do not count towards the limitation on floor area specified above.
f.
In no way shall the appearance of the structure be so altered or the conduct of the occupation within the structure be such that the structure may be reasonably recognized as serving a nonresidential use.
g.
No equipment or process shall be used in such home occupation which creates noise, vibration, glare, fumes, odors, or electrical interference detectable to the normal senses off the lot. In the case of electrical interference, no equipment or process shall be used which creates visual or audible interference in any radio or television receivers off the premises, or cause fluctuations in the line voltage off the premises.
h.
The home occupation shall not generate pedestrian or vehicular traffic in excess of that customarily associated with the zone in which the use is located.
i.
All maintenance or service vehicles and equipment, or any vehicle bearing any advertisement related to the home occupation or any other similar vehicle shall be garaged or entirely screened. Such vehicle shall not have more than two axles.
j.
There shall be no use of utilities or community facilities beyond that normal to the use of the property for residential or agricultural purposes as defined in the district.
k.
There shall be complete conformity with Fire, Building, Plumbing, Electrical and Health Codes and to all Federal, State and County laws or ordinances.
l.
Home occupations that exceed the standards for vehicle trips, employees, or that have display/sales areas may be permitted upon approval of an Administrative or Minor Use Permit as established by the following table:
(4)
Cottage food operations. A cottage food operation is allowed as an accessory use to any legally established residential unit subject to the standards of this Code, which are consistent with and implement State law (Sections 51035 et seq. of the Government Code and Sections 109947, 110050, 110460, 111955, 113789, 113851, 114021, 114023, 114390, 114405, and 114409, 113758, and 114088, and 114365 et seq. of the Health and Safety Code), relating to food safety:
a.
Registration. Cottage food operations shall be registered as "Class A" or "Class B" cottage food operations and shall meet the respective health and safety standards set forth in Section 114365 et seq. of the California Health and Safety Code.
b.
Sales. Sales directly from a cottage food operation are limited to the sale of cottage food products. A cottage food operation shall not exceed the gross annual sales that is set forth by the California Department of Public Health in each calendar year that follows.
c.
Operator and employee allowed. Only the cottage food operator and members of his or her household living in the unit, as well as one full-time equivalent cottage food employee, may participate in a cottage food operation.
d.
No exterior alteration. No exterior physical alteration or addition that would change the residential character of the unit is allowed in conjunction with the establishment of a cottage food operation.
e.
Location of operations. No sales, production, or materials storage associated with the cottage food operation may be located in an area generally visible from a public right-of-way.
Equipment. Cottage food operations may employ kitchen equipment as needed to produce products for which the operation has received registration, provided that equipment would not change the residential character of the unit, result in safety hazards, or create smoke or steam noticeable at the lot line of an adjoining residential property. Venting of kitchen equipment shall not be directed toward neighboring residential uses. If a commercial kitchen is required, the use is not classified as a cottage food industry. Please refer to Section 11.72.040, Commercial Use Classifications: Food Preparation and Section 11.74, Land Use Regulation Table.
(5)
Prohibited home occupations. The following specific businesses are not permitted as home occupations:
a.
Adult-oriented business;
b.
Ambulance services;
c.
Vehicle or equipment repair, painting, body/fender work, upholstering, detailing, washing, including motorcycles, trucks, trailers and boats;
d.
Automotive/vehicle sales with any on-site storage or sale of vehicles;
e.
Boarding, care, training, or breeding of animals for commercial purposes (except as permitted as a hobby kennel and subject to the regulations of Chapter 6.25, Pet Shops and Kennels, of the County Code).
f.
Veterinary services;
g.
Commercial food preparation, food handling, processing or packing other than that qualifying as a cottage food industry.
h.
Wood working or similar uses with excessive dust or noise when located within the valley growth boundary. Outside valley growth boundary must meet home occupation development standards;
i.
Medical and dental offices, clinics, and laboratories;
j.
Mini storage;
k.
Mortuaries;
l.
Recording studio (electronic composition, recording, and re-mixing conducted with headphones and using no amplification, live instruments or live performance excepted);
m.
Restaurants;
n.
Retail stores;
o.
Towing service;
p.
Welding, metal working, and machining businesses when located within the valley growth boundary. Outside valley growth boundary must meet home occupation development standards.
(6)
Denial and revocation of home occupation zoning clearances. A home occupation approval may be revoked or modified by the Planning Director subsequent to an administrative hearing for violation of any standard of this Section. In the event of the revocation of any home occupation approval, or of objection to the limitations placed thereon, appeal may be made in accordance with Section 11.53.150, Appeals and Calls for Review.
Agricultural Homestays and Bed and Breakfast Inns (B&B) shall be developed, located, and operated in compliance with the following standards:
(1)
Other permits and clearances. All B&B and agricultural homestays are subject to obtaining any required business licenses and payment of transient occupancy taxes as determined by the County Tax Collector's office. Facilities that provide meals or snacks to guests shall also obtain all required Environmental Health permits and clearances for a "restricted food service facility".
a.
Establishments that exceed the thresholds listed for B&Bs or agricultural homestays (i.e. number of rooms rented or meals served) shall be classified as a hotel/motel and is subject to the requirements and zone districts that allow such uses.
(2)
Agricultural homestays. Agricultural homestays shall be accessory and subordinate to an on-site, bona fide agricultural or ranching operation and operated by a resident of the property. They shall comply with the following standards:
a.
The use is limited to a maximum of 15 visitors at any one time.
b.
Meals may be served to overnight guests only. There are no limitations on the number of meals or the times at which they are served. The price of food shall be included in the price of the overnight accommodations, in compliance with the California Retail Food Codes (Health and Safety Code Section 113893) enforced by the County.
(3)
Bed and breakfasts. Bed and breakfast establishments shall be located, developed, and operated in compliance with the following standards:
a.
Type of structure. A bed and breakfast may only be located, developed and operated in a single-family dwelling, unless authorized with the approval of a use permit.
b.
Appearance. In all residential districts, the exterior appearance of a structure housing a bed and breakfast shall not be altered from its original single-family character.
c.
Limitation on services provided. Service of meals and rental of bedrooms shall be limited to registered guests. Separate or additional kitchens for guests are prohibited. Unless a commercial kitchen is installed and approved by the Environmental Health Department, meals are limited to breakfast and pre-packaged self serve snacks as regulated by the California Health and Safety Code.
(4)
Health resorts and retreat centers.
a.
Compatibility with adjacent uses. Lots adjacent to or within agricultural zoning must be reviewed by the Yuba County Agricultural Commissioner for compatibility with surrounding agricultural uses prior to action by the decision-making authority.
b.
Limitations on services provided. Meals may be served to registered day use or overnight guests only. There are no limitations on the number of meals or the times at which they are served.
A low-barrier navigation center development is a use by right in areas zoned for mixed use and nonresidential zones permitting multifamily uses, if it meets the following requirements:
(1)
Connected services. It offers services to connect people to permanent housing through a services plan that identifies services staffing.
(2)
Coordinated entry system. It is linked to a coordinated entry system, so that staff in the interim facility or staff who co-locate in the facility may conduct assessments and provide services to connect people to permanent housing. "Coordinated entry system" means a centralized or coordinated assessment system developed pursuant to Section 576.400(d) or Section 578.7(a)(8), as applicable, of Title 24 of the Code of Federal Regulations, as those sections read on January 1, 2020, and any related requirements, designed to coordinate program participant intake, assessment, and referrals.
(3)
Code compliant. It complies with Chapter 6.5 (commencing with Section 8255) of Division 8 of the Welfare and Institutions Code.
(4)
Homeless management information system. It has a system for entering information regarding client stays, client demographics, client income, and exit destination through the local Homeless Management Information System, as defined by Section 578.3 of Title 24 of the Code of Federal Regulations.
Within 30 days of receipt of an application for a low-barrier navigation center development, the County shall notify a developer whether the developer's application is complete, pursuant to Government Code Section 65943. Within 60 days of receipt of a completed application for a low- barrier navigation center development, the County shall act upon its review of the application.
Mobile vendors shall be located and operated in compliance with the following standards:
(1)
Itinerant/roving vendors. Itinerant vending is permitted pursuant to the standards listed below pertaining to the location, appearance of vehicle and maintenance of the site (Sections (3) through (5). Mobile vending shall only occur during daylight hours and are subject to the County's Noise Ordinance. Additional regulations pertaining to mobile vending may be found in CDSA's "Guidelines for Mobile Vending Facility Operation" handout.
(2)
Non-itinerant vending. Non-itinerant vending on private property, public property or in the public right-of-way requires a temporary use permit, pursuant to the procedures of Chapter 11.58, Temporary Use Permits, as well as any other permits, such as but not limited to a health certificate, vendor permit (County parks and public property), or encroachment permits, that may be required by affected agencies.
a.
Site plan. A mobile food vendor shall submit a site plan indicating the location of the operation relative to surrounding buildings, parking lots and public rights-of-way, as well as such other information deemed necessary by the Planning Director.
b.
Operational parameters. A temporary use permit for non-itinerant vending shall not exceed a period of one year. Extensions may be applied for prior to the expiration of the temporary use permit in one year increments up to a cumulative total of four years, unless findings can be made that there is still a need for the use. The temporary use permit may limit the days and hours of operation based on location.
c.
Sanitation facilities. All vendors shall arrange for access to a restroom for the operator; such facility for any vendor with food operations shall have hot and cold running water.
d.
Location and transferability. The temporary use permit is for a specific location and cannot be transferred to another location or vendor.
(3)
Location.
a.
Conflict with merchants. Vendors shall not interfere with access to any public or private establishment.
b.
Pedestrian and emergency access. Vendors are permitted only in locations that will not conflict with pedestrian access or interrupt traffic flow or emergency access.
c.
Setback from public right-of-way. A mobile food vending vehicle located on private property shall be set back a minimum of ten feet from any public sidewalk or right-of-way when the service window faces the street. Less obstructive orientations shall insure that the queue does not encroach upon the public right-of-way.
d.
Parking. The mobile food vendor shall not locate in parking spaces that are required to meet minimum parking requirements for any other business.
(4)
Condition and appearance of vehicles.
a.
Display of permits. The mobile food vendor shall display current business tax certificate, health department permit (and decal) and mobile food vending permit in plain view and at all times on the exterior of the food vending vehicle.
b.
Signs. Signs must be affixed to the apparatus and may not exceed eight square feet.
c.
Self-contained utility hookups. The mobile food vending vehicle and use shall be entirely self-sufficient in regards to gas, water, and telecommunications. Should any utility hook-ups or connections to on-site utilities be required for non-itinerant vendors, the mobile food vendor shall be required to apply for appropriate permits to ensure building and public safety and consistency with applicable building codes. Hookups shall be located to pose no danger to pedestrians.
d.
Type of vehicle. The mobile food vending vehicle shall be a self-propelled vehicle or trailer maintained in mobile operating condition at all times. The vehicle shall not become a fixture of the site and shall not be considered an improvement to real property.
(5)
Condition and appearance of site.
a.
Litter. The mobile food vendor shall provide a minimum of two 32-gallon litter receptacles within 15 feet of the mobile food vending vehicle. The receptacles will serve both employees and customers.
b.
Discharge prohibited. The vendor shall not discharge items onto the sidewalk, gutter or storm inlets.
c.
Site condition. The site shall be maintained in a safe and clean manner at all times. Exterior storage of refuse, equipment or materials associated with the mobile food vending enterprise is prohibited. The lot shall be paved.
Eating and drinking establishments with outdoor dining or seating areas shall be located, developed, and operated in compliance with the following standards:
(1)
Permit requirements. Outdoor dining or seating is considered an accessory use and no additional land use permit is necessary other than the permit required for the primary use except as provided below:
a.
Administrative use permit approval is required when the outdoor dining or seating area is located immediately abutting the property line of a residential district or use and contains seating for more than 15 customers.
(2)
Hours of operation. Hours of operation shall be limited to the hours of operation of the associated eating and drinking establishment. When adjacent to a residential district, hours of operation and outdoor activities such as music or lighting may be restricted as determined through the administrative use permit.
The on-going or permanent outdoor display of merchandise—except for automobile/vehicle sales and leasing, which is subject to Section 11.32.060, automobile/vehicle sales and services—shall comply with the following minimum standards:
(1)
Location. Outdoor sales shall be located entirely on private property outside any required setback (or landscaped planter in zoning districts that do not have required setbacks), fire lane, or fire access way.
(2)
Screening. All outdoor sales and activity areas other than vehicle sales lots, produce stands, and nursery product sales shall be screened from adjacent public rights-of-way and residential districts.
(3)
Location of merchandise. Displayed merchandise shall occupy a fixed location that does not disrupt the normal function of the site or its circulation and does not encroach upon required parking spaces, driveways, pedestrian walkways, or required landscaped areas. These displays shall also not obstruct sight distances or otherwise create hazards for vehicle or pedestrian traffic.
Personal storage facilities shall be located, developed and operated in compliance with the following standards:
(1)
Applicability. The provisions of this Section shall apply to all new personal storage uses and to all existing facilities at such time as the storage area of the existing business is expanded.
(2)
Business activity. The use of personal storage facilities by customers shall be limited to inactive storage only. No retail, repair, or other business activity shall be conducted out of the individual rental storage units. No activities other than rental of storage units, pick-up and deposit of storage, sale of packing supplies or rental of moving equipment shall be allowed on the premises. Examples of activities prohibited in said facilities include, but are not limited to the following:
a.
Auctions, commercial wholesale or retail sales, or miscellaneous garage sales. An exception is made for auctions required by law to comply with lien sale requirements. During the course of said lien sales, customer vehicles shall not be allowed to obstruct travel ways within the personal storage facility.
b.
The servicing, repair, or fabrication of motor vehicles, boats, trailers, lawn mowers, appliances, or other similar equipment.
c.
The operation of power tools, spray-painting equipment, table saws, lathes, compressors, welding equipment, kilns, or other similar equipment.
d.
The establishment of a transfer and storage business.
(3)
Enclosure. Outdoor storage of boats, trailers, and/or other vehicles is prohibited within the valley growth boundary unless screened and within an enclosed area. No boats, trailers, and/or other vehicles shall be parked or otherwise stored outside the storage units except in areas approved for such storage.
(4)
Hazardous materials. No caustic, hazardous, toxic or flammable or explosive matter, material, liquid, or object, nor any matter, material, liquid or object that creates obnoxious or offensive dust, odor or fumes shall be stored in a personal storage unit.
(5)
Utilities. Water, gas or telephone service to any rental space is prohibited.
(6)
Habitation. Human habitation of any rental space is prohibited.
(7)
Notice to tenants. As part of the rental process, the facility manager shall inform all tenants of conditions restricting storage of hazardous materials and limitation on the use of the storage units. These restrictions shall be included in rental contracts and posted at a conspicuous location within the front of each rental unit.
(8)
Surfacing. All areas shall meet the paving requirements listed in Section 11.25.100.(b)(1).
(9)
Exterior wall treatments and design. Within valley growth boundary, exterior walls visible from a public street or residential district shall be constructed of decorative block, concrete panel, stucco, or similar material. These walls shall include architectural relief through articulation, trim, change in color at the base, variations in height, the use of architectural "caps," attractive posts, or similar measures. Outside valley growth boundary, exterior walls visible from a public street shall be constructed with materials compatible with the surrounding neighborhood.
(a)
Purpose. The purpose of this Section is to promote housing opportunities for the present and future residents of Yuba County through the establishment of policies and development standards for planned mobile home parks. The development standards for planned mobile home parks will further encourage the creation of stable, attractive, residential environments within the individual parks.
(b)
Development standards. Planned mobile home parks shall comply with the following development standards
(1)
Mobile home sites.
a.
Site identification. Each mobile home site shall be plainly marked and numbered for identification.
b.
Minimum site area. The mobile home sites in a planned mobile home park shall average at least 2,700 square feet in area, but no site shall be smaller than 2,000 square feet.
c.
Minimum site width. Each mobile home site shall be an average width of 30 feet plus the width of the mobile home, unless it can be shown that adequate space for a patio, parking, and side yard(s) will be ensured, despite a site of lesser width.
(2)
Yards.
a.
Front yard. Each mobile home site shall have a front yard of not less than five feet. The front yard so required shall not be used for vehicle parking, except such portion thereof as is devoted to driveway use.
b.
Side yard, corner sites. On corner sites, the side yard adjoining the planned mobile home park street shall not be less than five feet.
c.
Side yards, interior. Each mobile home site shall have a side yard on each side of not less than five feet, or one side yard of not less than ten feet.
d.
Side yard, driveway. When used for access of a parking facility, a side yard shall be wide enough for a ten-foot-wide unobstructed driveway. All such side yard driveways shall be paved with concrete or asphaltic concrete unless located outside the valley growth boundary.
e.
Rear yard. Each mobile home site shall have a rear yard of not less than five feet in depth.
(3)
Projection into yards. The following structures may be erected or projected into any required yard:
a.
Eaves, stairways and awnings not to exceed one foot.
b.
Landscape elements including trees, shrubs, and other plants, except hedges, provided that such landscape feature does not hinder the movement of the manufactured home in or out of its space.
c.
Manufactured home hitches.
d.
Necessary appurtenances for utility services.
e.
A single accessory structure that is less than 120 square feet in area and eight feet in height may be located within side or rear setbacks.
(4)
Minimum distance between structures. No portion of a manufactured home or attached accessory structure shall be closer than ten feet to another manufactured home or attached accessory structure.
(5)
Minimum size of mobile homes. No mobile home that is less than ten feet wide or has a floor bed of less than 370 square feet may be parked or located on a mobile home site in a planned mobile home park.
(6)
Maximum site coverage. The mobile home and accessory structures shall not cover more than 75 percent of the mobile home site.
(7)
Number of homes per site. Not more than one single-family mobile home may be placed on a mobile home site.
(8)
Off-street parking. In addition to the parking requirements of Chapter 11.25, Parking and Loading, the following standards shall apply to planned mobile home parks:
a.
Each mobile home site shall have a paved space suitable for providing automobile shelter with space for at least two automobiles for each manufactured home. Gravel or other surfacing may be approved outside of the valley growth boundary
b.
Recreation and laundry areas shall have sufficient parking facilities to accommodate one automobile for every ten mobile home sites.
(9)
Signs. In addition to the requirements of Chapter 11.27, Signs, the following standards shall apply to planned mobile home parks:
a.
Adequate signs and markings indicating directions, parking areas, recreation areas, and street names shall be established and maintained in the manufactured home park. Such signs shall not exceed six square feet in area.
b.
Signs or name plates not exceeding two square feet in area and displaying the name and address only of the occupant of the manufactured home may be erected at each mobile home site.
c.
Signs which identify or advertise the planned mobile home park may be erected if approved by the hearing body on its action on the conditional use permit for the manufactured home park. Such signs must be located on the premises and shall not be more than 120 square feet in area. They shall not be animated or have flashing lights.
(10)
Landscaping. In addition to the landscaping requirements of Chapter 11.24, Landscape, the following landscaping provisions shall apply to all planned mobile home parks:
a.
All open areas except driveways, parking areas, walkways, utility areas, improved decks, patios, or porches shall be maintained with landscaping as hereinbefore defined.
b.
The trees shall be planted along street frontage as may be required by the hearing body upon recommendation of the Community Development and Services Agency's Public Works Department.
(11)
Walls and fences. Walls and fences on individual mobile home sites shall not exceed three feet in height. Walls or fences erected around the perimeter of the planned mobile home park may be required by the hearing body. The height, construction, and type of material for such perimeter walls shall be as specified by the hearing body in the permit authorizing the use.
(12)
Trash storage. Containers for trash storage of a size, type and quantity approved by the County shall be provided. They shall be placed so as to be concealed from the street and easily accessible to the mobile home sites.
(13)
Streets. Streets within planned mobile home parks shall be provided in such a pattern as to provide convenient traffic circulation within the manufactured home park. On-street parking is not permitted. Streets shall be designed as follows:
a.
Width. Streets shall have a width of not less than 30 feet, including curbs.
b.
Curbs. There shall be concrete roll curbs on each side of the streets.
c.
Paving. Streets shall be paved in accordance to standards established by the Community Development and Services Agency's Public Works Department.
d.
Lighting. Streets shall be lighted in accordance to standards established by the Community Development and Services Agency's Public Works Department.
(14)
Park and recreation areas. A central recreation area shall be established in each planned mobile home park created pursuant to the provisions of this Chapter. The size of such area shall be at least 200 square feet per mobile home site. The recreation area may contain community club houses, swimming pools, shuffleboard courts, and similar facilities. The hearing body may permit decentralization of the recreation facilities in accordance with principles of good planning provided that the total recreation area meets the above stated minimum size.
(15)
Office. Every planned mobile home park shall include a permanent building for office use. Such building may include a single-family dwelling for the exclusive use of the owner or manager.
(16)
Laundry rooms. Every planned mobile home park shall have one or more laundry rooms. Laundry drying lines shall not be permitted on any mobile home site.
(17)
Mail boxes. Each mobile home site shall be equipped with a receptacle for mail deliveries in accordance with the standards prescribed by the local residents.
(18)
Storage areas. Areas used for the storage of travel trailers, boats, and other such items may be established in a planned mobile home park provided they are adequately screened from public view.
(19)
Utilities. All utility distribution facilities serving individual mobile home sites within the valley growth boundary shall be placed underground. The owner is responsible for complying with the requirements of this Subsection and he shall make the necessary arrangements with each of the serving utilities for the installation of such facilities. Transformers, terminal boxes, meter cabinets, pedestals, concealed ducts, and other necessary appurtenant structures may be placed above ground. Water and sewer distribution facilities shall be installed in conformance with specifications of the Utility Engineer. All mobile home sites must be served with water, electricity, and a solid waste disposal.
(20)
Transient mobile home sites. Sites reserved for transient mobile homes shall be so designated on the plans submitted with the application for the planned mobile home park conditional use permit. The site, yard, and property development standards of this Section shall fully apply to sites reserved for transient mobile homes. Mobile homes less than ten feet wide or with a floor bed of less than 370 square feet may occupy such designed transient mobile home sites for periods up to 90 days.
(21)
Sale of mobile homes at manufactured home parks.
a.
Conditional use permit. The operation of a business or occupation either full or part-time, for the purpose of manufactured home sales, shall be allowed on the premises of any legally established planned mobile home park, subject to the issuance of a conditional use permit. This does not include the sale of individual manufactured homes by the owner of the unit.
b.
Restrictions. In no event shall the holder of the conditional use permit or any other person maintain or allow to be maintained on the planned mobile home park premises for display any manufactured home either assembled or disassembled which is not installed on the site and connected to all utilities sufficient to be legally adequate for immediate occupancy. The maximum number of unoccupied mobile homes so installed for display shall not exceed three units at any one time.
(22)
Development impact fees. Planned mobile home parks are subject to the County Development Impact Fees.
(c)
Allowed density.
(1)
RM medium density residential and RH high density residential districts. The density for mobile home parks is limited to the allowed density within the RM medium density residential and RH high density residential zoning districts unless a density bonus is approved.
(2)
RC rural commercial district. The allowed density for mobile home parks in the RC rural commercial district shall be determined by approval of a conditional use permit and carrying capacity for wells and septic systems as determined by the Department of Environmental Health.
(a)
Accessory use. Produce stands shall be operated in conjunction with and accessory to a primary agricultural use on the same site. They shall be operated by the agricultural producer and on premises controlled by the producer. Produce stands that do not meet the requirements of this Section shall be classified as a farm store and shall meet the requirements listed in Section 11.32.230, Ranch Marketing.
(b)
Products for sale. Products sold or offered for sale at a produce stand are limited to the following:
(1)
Unprocessed agricultural products. A minimum of 50 percent of the selling space of the stand shall be dedicated to selling whole produce, shell eggs, and/or cut flowers grown or raised on the same premises as the stand or on neighboring farms.
(2)
Value-added agricultural products. Up to 30 percent of the selling space may be used for un-refrigerated processed agricultural products such as jams, preserves, pickles, juices, cured olives, and other value-added products made with ingredients produced on the premises or neighboring farms and may be sold concurrently with unprocessed agricultural products with approval from the Environmental Health Director.
(3)
Pre-packaged foods and beverages. No more than 50 square feet or ten percent of the selling space may be occupied by pre-packaged food and drinks such as bottled water, sodas, and crackers.
(c)
Number of stands. One stand shall be permitted per parcel, or per group of adjacent parcels under the same ownership.
(d)
Size limitation. The floor area of any permanent structure utilized as part of the produce stand shall not exceed 120 square feet in area. The total display area shall not exceed 500 square feet. Use of temporary structures such as but not limited to display tables and pop-up awnings shall only be used during the operational hours of the produce stand.
(e)
Minimum setbacks. Stands shall be located at least 20 feet from any street or highway and 100 feet from any existing residence outside the ownership of the stand operator. In addition, no part of the use, including selling area, signs, and parking, may be located within the triangular visibility area described in Section 11.19.130, Visibility at Intersections and Driveways.
(f)
Access. Access shall not be directly from a State highway unless the operator has secured an access agreement from Caltrans. The access drive is not required to be paved, but if not paved, shall be improved with gravel.
(g)
Parking. Sufficient area shall be provided for at least two vehicles to park; such parking area may consist of gravel and is not required to be paved.
(a)
Purpose. This Section is intended to allow the marketing and sale of agricultural products directly to consumers, as well as the provision of agricultural tourism, when such uses are accessory to a primary agricultural use (animal raising, crop production, dairy, or grazing) on the same site. Ranch marketing can provide supplementary income to agricultural operations, particularly to small farms, while maintaining the rural character of Yuba County's agricultural areas. This section is intended to implement General Plan policies to:
(1)
Support rural communities in the development of economic opportunities such as agricultural and ecological tourism.
(2)
Support agriculture, agricultural processing, agricultural tourism, recreational uses, and other natural-resource-based economic development in areas with land-based natural resources, natural beauty, and cultural attractions.
(3)
Preserve and enhance rural character.
(b)
Applicability. The regulations of this Section apply to ranch marketing uses, as defined in Chapter 11.72, Use Classifications, where they are permitted or conditionally permitted by the use regulations of the base and overlay zoning districts (Division II: Zoning and Overlay Districts) and are accessory to agricultural uses. This section does not apply to the following uses:
(1)
Produce stands that meet all of the standards of Section 11.32.220, Produce Stands.
(2)
Indirect sales by mail, telephone, or Internet in which delivery of the goods occurs off-site.
(3)
Wholesale sale of agricultural products.
(c)
General provisions.
(1)
Minimum lot size. Ranch marketing uses may only be established and operated on a site with an area of at least five acres. A smaller lot size may be approved through a waiver when the following findings can be made:
a.
The operation produces an agricultural commodity in sufficient quantity that a farm store rather than a seasonal produce stand is justified; and
b.
The farm store and any other related ranch market activities including required parking areas will not reduce the area utilized for agricultural production.
(2)
Accessory use. Ranch marketing uses shall be accessory to a primary agricultural production use (animal raising, crop production, dairy, grazing, or wineries) on the same property and shall be operated by the property owner or lessee of the agricultural property. Should the primary agricultural use of the property cease, as determined by the Agricultural Commissioner and Community Development and Services Agency Director, the ranch marketing operation shall also cease.
(d)
Permitted and conditionally permitted uses. The following table outlines the type of permit needed, if any, for various types of ranch marketing uses. The Planning Director shall make a determination of the most applicable permit type based on similarities between listed uses for any ranch marketing use not listed.
(e)
Development standards.
(1)
Parking. Parking for uses shall be as established in Section 11.25, Parking and Loading or as determined by the decision-making authority for those activities that require a use permit.
(2)
Hours of operation. Ranch marketing activities are limited to daylight hours unless alternative hours are authorized through a use permit or as authorized under Section 11.32.320(9), Temporary Uses and Special Events.
(3)
Amplified music or speech. Amplified music or speech is prohibited except as authorized under Section 11.32.320(9), Temporary Uses and Special Events or as part of an approved use permit.
(4)
Food safety (and compliance with other agency requirements). Sale of processed agricultural products, prepackaged food items, and prepared foods, where permitted, shall comply with the California Health and Safety Code, subject to approval from all applicable agencies including, but not limited to the Yuba County Department of Environmental Health, California Department of Public Health, and California Department of Food and Agriculture.
(f)
Findings for approval. Prior to approving a ranch marketing project the decision-making authority shall make the following findings:
(1)
The site meets the minimum acreage and planting standards.
(2)
The proposed use is secondary and subordinate to the agricultural use.
(3)
The proposed use does not detract from or diminish the on-site agricultural uses.
(4)
There is no adverse effect on agricultural production on surrounding properties.
(5)
There is no adverse effect on the surrounding properties and community character that cannot be mitigated to less than significant.
(g)
Exceptions to standards. The standards of this Section may be waived or modified through conditional use permit approval where in addition to the necessary findings for a conditional use permit, the Planning Commission shall also make the findings listed in Section 11.32.220(f), Findings for Approval.
(a)
Recycling collection facilities. Recycling collection facilities (convenience recycling), including reverse vending machines, shall comply with the following standards:
(1)
Accessory use. Recycling collection facilities shall be located on the same site as a permitted primary use that sells CRV products (i.e. grocery stores, convenience stores, and service stations). Ancillary sale of CRV products (i.e. vending machines for employees/customers, sale or complimentary to customers where primary business is not retail food products) does not constitute a primary use that sells CRV products. The Zoning Administrator may approve deviations to this requirement for facilities outside the valley growth boundary where a public benefit can be demonstrated by having the recycling collection facility at that location and the site is located within a convenience zone as determined by CalRecycle. However, recycling facilities shall not be permitted within an AE or AI zone district.
(2)
Size. Recycling collection facilities shall not exceed a footprint of 350 square feet.
(3)
Equipment. No power-driven processing equipment, except for reverse vending machines, may be used.
(4)
Location. Facilities shall not be located within 50 feet of any residential district. There shall be a minimum of one mile distance between convenience recycle centers.
(5)
Hours of operation. Attended facilities located within 100 feet of any residential district shall operate only during the hours between 8:00 a.m. and 7:00 p.m.
(6)
Setback. Facilities shall be set back at least ten feet from any lot line abutting a street and shall not obstruct pedestrian or vehicular circulation.
(7)
Containers. Containers shall be constructed of durable waterproof and rustproof material(s) and secured from unauthorized removal of material. Capacity shall be sufficient to accommodate materials collected in the collection schedule. Screening with fences, walls and landscaping is encouraged. No temporary shade structures (i.e. pop-up tents) or similar structures shall be permitted.
(8)
Identification. Containers shall be clearly marked to identify the type of accepted material, the name and telephone number of the facility operator, and the hours of operation.
(9)
Signs. The maximum sign area shall be 20 percent of the area of the side of facility or container or 16 square feet, whichever is larger. In the case of a wheeled facility, the side is measured from the pavement to the top of the container. The Director may authorize increases in the number, size and nature of additional signs for necessary directional or identification purposes but not for outdoor advertising.
(10)
Parking. Patrons and any attendant shall not reduce available parking spaces below the minimum number required for the main use of the site unless a parking study shows available capacity during recycling facility operation.
(11)
Site maintenance. Sites shall be maintained clean, sanitary, and free of litter and any other undesirable materials. All litter generated by the recycling operation shall be removed. The litter control shall be provided at the entrance(s) of the facility and along the street, sidewalk, and setback areas adjacent to the facility. Facilities shall also meet the requirements of the Public Works Department regarding drainage and water quality regulations.
(12)
Sorting. No sorting of materials shall occur on site, with the exception of reverse vending machines, which automatically sort materials.
(13)
Reverse vending machines. Reverse vending machines shall comply with the following additional standards:
a.
Location. Machines shall be located adjacent to the entrance of the commercial host use and shall not obstruct pedestrian or vehicular circulation. If located outside of a building, the machines shall not occupy required parking spaces.
b.
Maximum size. Each reverse vending machine shall not exceed an area of 50 square feet each (including any protective enclosure) or a height of eight feet.
c.
Identification. Machines shall be clearly marked to identify the type of material to be deposited, operating instructions, and the identity and phone number of the operator or responsible person to call if the machine is inoperative.
d.
Signs. Notwithstanding the above provisions for signs on collection facilities, the maximum sign area on a reverse vending machine shall be four square feet, exclusive of operating instructions.
e.
Lighting. Machines shall be illuminated to ensure comfortable and safe operation between dawn and dusk.
f.
Trash receptacle. A garbage can of at least 40-gallon size shall be located adjacent to the reverse vending machine for the deposit of non-recyclable materials.
(b)
Recycling processing facilities.
(1)
Location. Facilities shall not abut a residential district.
(2)
Screening. The facility must be screened from public rights-of-way by solid masonry walls or located within an enclosed structure. In industrial districts alternative screening mechanisms may be approved by the Planning Director.
(3)
Outdoor storage. Exterior storage of material shall be in sturdy containers or enclosures that are secured and maintained in good condition. Storage shall not be visible above the height of the required screen walls.
(4)
Identification. Facilities shall be clearly marked with the name and phone number of the facility operator and hours of operation.
General residential care facilities shall be located, developed, and operated in compliance with the following standards:
(1)
Location. A general residential care facility must be located a minimum of 300 feet from any other general residential care facility.
(2)
Outdoor activities. Outdoor activities may only be conducted between the hours of 7:00 a.m. and 10:00 p.m.
(3)
State licensing. All residential care facilities shall be licensed and certified by the State of California and shall be operated according to all applicable State and local health and safety regulations.
(4)
No drug or alcohol use. Residents and staff shall sign an agreement affirming that use of drugs or alcohol on the premises is prohibited and acknowledging that drug or alcohol use will result in termination or eviction.
Single room occupancy (SRO) facilities shall be located, developed, and operated in compliance with the following standards:
(1)
Maximum occupancy. Each SRO living unit shall be designed to accommodate a maximum of two persons.
(2)
Minimum size. An SRO living unit must have at least 150 square feet of floor area, excluding closet and bathroom. No individual unit may exceed 400 square feet.
(3)
Minimum width. An SRO of one room shall not be less than 12 feet in width.
(4)
Entrances. All SRO units must be independently accessible from a single main entry, excluding emergency and other service support exits.
(5)
Cooking facilities. Cooking facilities shall be provided either in individual units or in a community kitchen. Where cooking is in individual SRO units, SRO units shall have a sink with hot and cold water; a counter with dedicated electrical outlets and a microwave oven or properly engineered cook top unit pursuant to Building Code requirements; a small refrigerator; and cabinets for storage.
(6)
Bathroom. An SRO unit is not required to but may contain partial or full bathroom facilities. A partial bathroom facility shall have at least a toilet and sink; a full facility shall have a toilet, sink and bathtub, shower or bathtub/shower combination. If a full bathroom facility is not provided, common bathroom facilities shall be provided in accordance with the California Building Code for congregate residences with at least one full bathroom per floor.
(7)
Closet. Each SRO unit shall have a separate closet.
(8)
Common area. Four square feet per living unit shall be provided, excluding janitorial storage, laundry facilities and common hallways. At least 200 square feet in area of interior common space provided as a ground floor entry area that provides a central focus for tenant social interaction and meetings.
(9)
Tenancy. Tenancy of SRO units shall be limited to 30 or more days.
(10)
Facility management. An SRO Facility with ten or more units shall provide full-time on-site management. An SRO Facility with less than ten units shall provide a management office on-site.
(11)
Management plan. A management plan shall be submitted with the permit application for all SRO projects. At minimum, the management plan must include the following:
a.
Security/safety. Proposed security and safety features such as lighting, security cameras, defensible space, central access, and user surveillance;
b.
Management policies. Management policies including desk service, visitation rights, occupancy restrictions, and use of cooking appliance;
c.
Rental procedures. All rental procedures, including tenancy requirements;
d.
Staffing and services. Information regarding all support services, such as job referral and social programs; and
e.
Maintenance. Maintenance provisions, including sidewalk cleaning and litter control, recycling programs, general upkeep, and the use of durable materials.
(a)
Purpose. The provisions of this Section are intended to encourage the use of renewable energy sources that are compatible with surrounding uses. Solar energy systems, including personal solar energy systems and solar power generation facilities, shall be designed, located, and operated consistent with the standards of this Section.
(b)
Allowable size of solar energy systems. Any number of solar panels may be in operation on a single site, in accordance with this Section.
(1)
Personal solar energy systems. It is assumed that systems consistent with Table 11.32.270, below, are primarily providing power to offset consumption. Uses that have a higher energy requirement than stated in the table may submit documentation demonstrating that a larger system is needed to provide for historic energy demands (energy use from the previous 24 months and either: maximum output of panels, maximum continuous output of the inverters, or estimated KWh the system will produce over a year based on location/orientation of panels and output of inverters). For new construction, documentation demonstrating typical energy demands for similar uses, size buildings, and construction type may be considered.
a.
For systems located in the AE, AI, IG, IL, PF, and EX zoning districts the power consumption can be for onsite consumption as well as other offsite consumption associated with the business or agency within Yuba County as allowed by the CPUC, so long as offsite solar system is not located in a residential or mixed use district. In addition to the building permit requirements, a plan shall be submitted identifying location of all facilities intended to be offset by the small solar energy system, identify the location of the solar system(s) and a summary of the cumulative energy consumption of the facilities and the anticipated KWh the solar system will produce. Allow development standards for the solar system as identified below shall apply.
b.
Solar power generation facilities. The number of panels and kilowatt generation shall be determined through the use permit process. Any project not meeting the requirements of Subsection 11.32.270 (b)(1) will be considered a solar generation facility.
1.
Small solar power generation facilities. Facilities on sites less than ten acres in size outside the valley growth boundary may be processed as a minor conditional use permit in those districts that allow for such facilities.
(c)
Maximum height. Solar panels, as well as attachments to existing buildings and towers, shall comply with the maximum permitted height of the zoning district in which they are located.
(d)
Location.
(1)
In the RS zone freestanding personal solar energy system (not attached to an existing structure) shall only be located in the rear yard portion of any lot. This requirement does not apply if the solar energy system is attached to a building.
(2)
It is the property owner's responsibility to situate any solar collector so that a neighbor's trees or buildings—now or in the future, or any time of the year do not block access to the sun.
(e)
Maintenance. When a system reaches the end of its useful life and can no longer function, the owner of the system shall remove the system within 120 days of the day on which the system last functioned. The owner is solely responsible for removal of the system and all costs, financial or otherwise, of system removal. Failure to remove the system will be considered a nuisance and abated per Chapter 11.67, Enforcement and Abatement Procedures.
(a)
Purpose. The provisions of this Section are intended to encourage the use of renewable energy sources that are compatible with surrounding uses. Wind energy systems, including personal wind energy systems and wind power generation facilities, shall be designed, located, and operated consistent with the standards of this Section.
(b)
Minimum lot size. Wind energy systems are allowed on properties that are at least five acres in size within the valley growth boundary and any size parcel outside the valley growth boundary.
(c)
Maximum power generation. The size of personal wind energy systems shall not exceed the following:
(1)
Personal wind energy systems shall not exceed 20 kilowatts for residential uses and 50 kilowatts for non-residential uses unless the owner can demonstrate that the historical power consumption (energy use from the previous 24 months) is greater than the kilowatts allowed by use type. (See also personal power generation facility.) For systems located in the AE, PF, and EX zoning districts the power consumption can be for onsite consumption as well as other offsite consumption associated with the business or agency located within Yuba County as allowed by the CPUC, so long as offsite wind system is located in a zone district that allows for wind energy systems.
(2)
Those projects not meeting the requirements of Subsection 11.32.280 (c)(1) will be considered a wind power generation facility and maximum power generation shall be determined through a conditional use permit.
(d)
Height. The total height of wind energy systems is measured as the vertical distance from the ground level to the tip of a wind generator blade when the tip is at its highest point, and shall not exceed the following maximum height requirements:
(1)
Wind towers.
a.
On parcels less than five acres, the tower shall not exceed 35 feet.
b.
On parcels between five and ten acres, the tower height shall not exceed 80 feet.
c.
On parcels greater than ten acres, the tower height shall not exceed 100 feet unless additional height is provided through the use permit approval.
d.
Properties within 10,000 feet of an airport must comply with FAA height standards and regulations.
(2)
Attachments to existing buildings and towers.
a.
Building. A wind turbine(s) may be affixed to the building or the roof, provided that:
1.
The total height of the wind turbine is less than 20 feet above the highest point of the building.
2.
The base of the wind turbine cannot be seen from the road right-of-way.
b.
Towers. A wind turbine may be attached to an existing tower, provided that:
1.
The tower is designed to accommodate the wind turbine.
2.
The tower is in compliance with Subsection (f), Liability, of this Section.
(e)
Location.
(1)
Personal wind energy systems.
a.
Rear yard location. Personal wind energy systems shall only be located in the rear yard portion of any lot. The above locational limitation does not apply in the following situations:
1.
When located in AE, IG, SE, EX, RP, and TP districts and a rear-yard location would interfere with agricultural, mining, timber, or other permitted operations on the site.
2.
When the wind system is attached to a building the base of which cannot be viewed from any roadway.
b.
View maintenance. The system shall not substantially obstruct views of adjacent properties, and, where feasible, shall be placed below any major ridgeline.
(2)
Tower setbacks. Towers must be located:
a.
At least 1.2 times their height from any public road right-of-way.
b.
At least 1.2 times their height from any overhead utility lines, except those lines directly serving the subject property.
c.
At least 1.2 times their height from all property boundaries.
d.
Outside of the setback for the zoning district.
(3)
Guy wire anchors setbacks. If guy wires are utilized as part of the tower design, then the guy wire anchors shall be placed at least 30 feet from any abutting property boundaries and outside any front yard setback.
(4)
Turbines attached to buildings. The minimum distance a wind turbine may be from the property boundaries, if it is located on a building, must be 1.2 times the distance that is equal to the total height of the wind turbine from the ground.
(f)
Liability. The property owner shall be prepared to demonstrate proof of public liability insurance prior to issuance of permits and maintain said insurance during the entire useful life of the power generation facility.
(g)
Variances to personal wind energy systems. Deviations to the following development standards for personal wind energy systems may be granted upon approval of a minor use permit.
(1)
To locate wind turbines in the front or side yard of primary structure if pre-existing geography, vegetation or built environment would preclude the use of wind power in the rear of the primary structure.
(2)
To increase the permitted height of a tower or wind turbine.
(h)
Electrical interference. The wind energy system shall not cause any radio, television, microwave, or navigation interference. If a signal problem is identified, the applicant shall correct the problem within 90 days of being notified by the Yuba County Community Development and Services Agency of a problem.
(i)
Noise.
(1)
Personal wind energy systems. Decibel levels for the system shall not exceed 60 decibels as measured at the nearest property line, except during short-term events, such as utility outages and severe wind storms.
(2)
Wind power generation facilities. Wind power generations facilities shall not exceed the sound level (decibels) as specified in the conditional use permit and environmental document.
(j)
Color of towers. All towers shall be painted a non-contrasting gray, blue, white, green or similar color, minimizing their visibility, unless otherwise required by the Federal Aviation Administration (FAA). The applicant has the responsibility of determining the applicable FAA regulations and securing the necessary approvals prior to issuance of permits. Copies of FAA correspondence must be included as part of the application process for the wind energy systems.
(k)
Lighting. Except as required by law, a tower shall not be illuminated and lighting fixtures or signs shall not be attached to the tower. If lighting is required by the FAA regulations, white strobe lights shall not be permitted at night unless FAA permits no other alternatives. No lighting shall be constructed, placed or maintained in a manner that will constitute a nuisance to any surrounding property. Lighting shall in no way impair safe movement of traffic on any street or highway.
(l)
Advertising. No advertising is permitted anywhere on the facility, with the exception of signage being utilized for product identification and warnings.
(m)
Warnings.
(1)
A clearly visible warning sign concerning voltage must be placed at the base of all pad-mounted transformers and substations.
(2)
Visible, reflective, colored objects, such as flags, reflectors, or tape, shall be placed on the anchor points of guy wires and along the guy wires up to a height of ten feet from the ground.
(n)
Maintenance.
(1)
The design and location of any wind energy system shall ensure that all maintenance can be conducted from the installation site.
(2)
A wind energy system that is not functional shall be repaired by the owner or removed.
(3)
When a wind energy system reaches the end of its useful life and can no longer function, the owner of the system shall remove the system within 120 days of the day on which the system last functioned. The owner is solely responsible for removal of the system and all costs, financial or otherwise, of system removal. Failure to remove the system will be considered a nuisance and abated per Chapter 11.67, Enforcement and Abatement Procedures.
(4)
Any wind energy system that is not operated on a functional basis for a period of six consecutive months shall be deemed abandoned and shall be removed pursuant to paragraph (3) above.
(o)
Safety features.
(1)
The base of the tower must be designed so it is not climbable for a distance of 15 feet, as measured from the ground.
(2)
All access doors to wind turbines and electrical equipment shall be locked to prevent entry by non-authorized persons.
(3)
The wind energy system turbine shall be required to have an automatic over speed control to render the system inoperable when the winds are in excess of the speed the system is designed to accommodate.
(4)
The wind energy system shall be required to have a manually operable method to render the system inoperable in the event of a structural or mechanical failure of any part of the system.
(5)
Blade clearances.
a.
The clearance or the distance between the blades of a wind turbine and the blades of another wind turbine shall be no less than ten feet. Unless a lesser distance is provided by the manufacturer.
b.
The clearance or the distance between the blades of a wind turbine and the ground shall be no less than 15 feet.
(a)
General provisions.
(1)
Authority. This Section is adopted under the provisions of the Surface Mining and Reclamation Act of 1975 (Public Resources Code § 2710 et seq.) and the power of the County of Yuba to protect the public health, safety, and welfare of its residents.
(2)
Findings. The Board of Supervisors hereby finds and declares:
a.
The extraction of minerals is essential to the continued economic well-being of Yuba County and to the needs of society. The reclamation of mined lands is necessary to prevent or minimize adverse effects on the environment and to protect the public health and safety.
b.
The reclamation of mined lands as provided in this Section will permit the continued mining of minerals and will provide for the protection and subsequent beneficial use of the mined and reclaimed land.
c.
Surface mining takes place in diverse areas where the geologic, topographic, climatic, biological, and social conditions are significantly different and that reclamation operations and the specifications therefore may vary accordingly.
(3)
Intent. It is the intent of the Board to create and maintain an effective and comprehensive surface mining and reclamation policy with regulation of surface mining operations so as to ensure that:
a.
Adverse environmental effects are prevented or minimized and that mined lands are reclaimed to a usable condition which is readily adaptable for alternative land uses.
b.
The production and conservation of minerals are encouraged, while giving consideration to values relating to recreation, watershed, wildlife, range and forage, and aesthetic enjoyment.
c.
Residual hazards to the public health and safety are eliminated.
(4)
Exceptions. The provisions of this Section shall not apply to any of the following activities:
a.
Excavations or grading conducted for farming or the immediate excavation or grading of lands affected by a flood or natural disaster for the purpose of restoring those lands to their prior condition.
b.
Onsite excavation and onsite earthmoving activities that are an integral and necessary part of a construction project and that are undertaken to prepare a site for construction of structures, landscaping, or other land improvements associated with those structures, including the related excavation, grading, compaction, or the creation of fills, road cuts, and embankments, whether or not surplus materials are exported from the site, subject to all of the following conditions:
1.
All required permits for the construction, landscaping, or related land improvements have been approved by a public agency in accordance with applicable provisions of State law and locally adopted plans and ordinances, including, but not limited to, Public Resources Code Div. 13 (Public Resources Code § 21000 et seq.).
2.
The lead agency's approval of the construction project included consideration of the onsite excavation and onsite earthmoving activities pursuant to Public Resources Code Div. 13 (Public Resources Code § 21000 et seq.).
3.
The approved construction project is consistent with the general plan and zoning of the site.
4.
Surplus materials shall not be exported from the site unless and until actual construction work has commenced and shall cease if it is determined that construction activities have terminated, have been indefinitely suspended, or are no longer being actively pursued.
c.
Operation of a plant site used for mineral processing, including associated onsite structures, equipment, machines, tools, or other materials, including the onsite stockpiling and onsite recovery of mined materials, subject to all of the following conditions:
1.
The plant site is located on lands designated for industrial uses in the County general plan.
2.
The plant site is located on lands zoned industrial, or are contained within a zoning category intended exclusively for industrial activities by the County.
3.
None of the minerals being processed are being extracted on site.
4.
All reclamation work has been completed pursuant to the approved reclamation plan for any mineral extraction activities that occurred onsite after January 1, 1976.
d.
Prospecting for, or the extraction of, minerals for commercial purposes where the removal of overburden or mineral product totals less than 1,000 cubic yards in any one location, and the total surface area disturbed is less than one acre.
e.
Surface mining operations that are required by Federal law in order to protect a mining claim, if those operations are conducted solely for that purpose.
f.
Any other surface mining operations that the Board, as defined by Public Resources Code § 2001, determines to be of an infrequent nature and which involve only minor surface disturbances.
g.
Emergency excavations or grading conducted by the State Department of Water Resources, the Reclamation Board or County for the purpose of averting, alleviating, repairing, or restoring damage to property due to imminent or recent floods, disasters, or other emergencies.
h.
State Department of Water Resources Projects.
1.
Surface mining operations conducted on lands owned or leased, or upon which easements or rights-of-way have been obtained, by the State Department of Water Resources for the purpose of the State Water Resources Development System or flood control, and surface mining operations on lands owned or leased, or upon which easements or rights-of-way have been obtained, by the State Reclamation Board for the purpose of flood control, if the Department of Water Resources adopts, after submission to and consultation with, the Department of Conservation, a reclamation plan for lands affected by these activities, and those lands are reclaimed in conformance with the standards specified in regulations of the Board adopted pursuant to this Section. The Department of Water Resources shall provide an annual report to the Department of Conservation by the date specified by the State Department of Conservation on these mining activities.
2.
Nothing in this Subsection shall require the Department of Water Resources or the Reclamation Board to obtain a permit or secure approval of a reclamation plan from the County in order to conduct surface mining operations. Nothing in this Subsection shall preclude the bringing of an enforcement action pursuant to Public Resources Code § 2774.1, if it is determined that a surface mine operator, acting under contract with the Department of Water Resources or the Reclamation Board on lands other than those owned or leased, or upon which easements or rights-of-way have been obtained, by the Department of Water Resources or the Reclamation Board, is otherwise not in compliance with this Section.
i.
Excavations.
1.
Excavations or grading for the exclusive purpose of obtaining materials for roadbed construction and maintenance conducted in connection with timber operations or forest management on land owned by the same person or entity. This exemption is limited to excavation and grading that is conducted adjacent to timber operation or forest management roads and shall not apply to on-site excavation or grading that occurs within 100 feet of a class one watercourse or 75 feet of a class two watercourse, or to excavation for materials that are, or have been, sold for commercial purposes.
2.
This exemption shall be available only if slope stability and erosion are controlled in accordance with 14 CCR §§ 3704(f) and 3706(d) and, upon closure of the site, the person closing the site implements, where necessary, revegetation measures and post closure uses in consultation with the State Department of Forestry and Fire Protection.
j.
Excavations, grading, or other earthmoving activities in an oil or gas field that are integral to, and necessary for, ongoing operations for the extraction of oil or gas that comply with all of the following conditions:
1.
The operations are being conducted in accordance with Public Resources Code Div. 3 (Public Resources Code § 3000 et seq.).
2.
The operations are consistent with any general plan and zoning applicable to the site.
3.
The earthmoving activities are within oil or gas field properties under a common owner or operator.
4.
No excavated materials are sold for commercial purposes.
(5)
Limitations. No provision of this Section or any ruling, requirement, or policy of the State Board is a limitation on any of the following:
a.
The police power of the County or on the power of the County to declare, prohibit, and abate nuisances.
b.
The power of the District Attorney, at the request of the Board, or upon the District Attorney's motion, to bring an action in the name of the people of the State of California to enjoin any pollution or nuisance.
c.
The power of the County in the enforcement or administration of any provision of law which it is specifically authorized or required to enforce or administer.
d.
The right of any person to maintain at any time any appropriate action for relief against any private nuisance as defined in Civil Code Div. 4, Pt. 3 (Civil Code § 3479 et seq.) or for any other private relief.
e.
The power of the County to adopt policies, standards, or regulations imposing additional requirements on any person if the requirements do not prevent the person from complying with the provisions of this Section.
f.
The power of the County to regulate the use of buildings, structures, and land as between industry, business, residents, open space (including agriculture, recreation, the enjoyment of scenic beauty, and the use of natural resources), and other purposes.
(b)
Permits.
(1)
Permit required; issuance; standards for issuance. Except as provided in this Subsection, no person shall conduct surface mining operations in the County unless:
a.
An application for a permit is filed with the Planning Department on a form approved by the Director;
b.
A permit is approved by, the Planning Commission for the operation under this Section;
c.
A copy of an approved reclamation plan and financial assurances from the State shall be submitted to the Planning Department prior to the commencement of mining operations;
d.
All fees established by the Board to pay for the costs of processing and review of the application for the permit, the reclamation plan, and the financial assurances are paid.
(2)
Idle mine, interim management plan and appeal. Within 90 days of a surface mining operation becoming an idle mine, the operator shall submit to the Planning Department for Planning Commission review and approval, an interim management plan. The review and approval of an interim management plan shall not be considered a project within the meaning of CEQA. The approved interim management plan shall be considered an amendment to the surface mining operation's approved reclamation plan, for purposes of this Section. The interim management plan shall provide measures the operator will implement to maintain the site in compliance with this Section, including, but not limited to, all permit conditions.
a.
The interim management plan may remain in effect for a period not to exceed five years, at which time the Planning Commission shall do one of the following:
1.
Renew the interim management plan for another period not to exceed five years, if the Planning Commission finds that the surface mining operator has complied fully with the interim management plan; or,
2.
Require the surface mining operator to commence reclamation in accordance with its approved reclamation plan.
b.
In any event, required financial assurances shall remain in effect during the period the surface mining operation is an idle mine. If the surface mining operation is still idle after expiration of its interim management plan, the surface mining operation shall commence reclamation in accordance with its approved reclamation plan.
c.
Within 60 days of the receipt by the Planning Department of the interim management plan, or a longer period, not to exceed an additional 60 days, mutually agreed upon by the Director and the operator, the Planning Commission shall review and approve the plan in accordance with this Section, so long as the plan satisfies the above requirements, and so notify the operator in writing. Otherwise, the Planning Commission shall notify the operator in writing of any deficiencies in the plan. The operator shall have 30 days, or a longer period mutually agreed upon by the operator and the Planning Commission, to submit a revised plan.
d.
The Planning Commission shall approve or deny approval of the revised interim management plan within 60 days of receipt by the Planning Department. If the Planning Commission denies approval of the revised interim management plan, the operator may appeal that action to the Board, which shall schedule a public hearing within 45 days of the filing of the appeal with the Clerk of the Board, or any longer period mutually agreed upon by the operator and the Board. The provisions of Section 11.53.150 shall apply to such appeal.
(c)
Stay of enforcement action. Any enforcement action which may be brought against a person with an existing surface mining operation who has received Planning Commission approval of its financial assurances for reclamation prior to January 1, 1991, or a person who has filed an appeal with the Board or with the Planning Commission, shall be held in abeyance pending the resolution of an appeal pursuant to this Section.
(d)
Operation in 100-year floodplain and near state bridge. Whenever surface mining operations are proposed in the 100-year floodplain for any stream, as shown in zone A of Flood Insurance Rate Maps issued by the Federal Emergency Management Agency, and within one mile, upstream or downstream, of any State highway bridge, within ten days of the Planning Department's receipt of the application for the issuance or renewal of a permit to conduct the surface mining operations, the Planning Department shall notify the California Department of Transportation that the application has been received. The Planning Commission shall not issue or renew the permit until the Department of Transportation has submitted its comments or until 45 days from the date the application for the permit was submitted to the Department of Transportation, whichever occurs first.
(e)
Vested rights. No person who has obtained a vested right to conduct surface mining operations prior to January 1, 1976, shall be required to secure a permit pursuant to this Section as long as the vested right continues and as long as no substantial changes are made in the operation except in accordance with this Section. A person shall be deemed to have vested rights if, prior to January 1, 1976, the person has, in good faith and in reliance upon a permit or other authorization, if the permit or other authorization was required, diligently commenced surface mining operations and incurred substantial liabilities for work and materials necessary therefore. Expenses incurred in obtaining the enactment of an ordinance in relation to particular operation or the issuance of a permit shall not be deemed liabilities for work or materials. An official vested rights determination needs to be made by the approving authority pursuant to a public hearing.
(1)
Nothing in this Section shall be construed as requiring the filing of a reclamation plan for, or the reclamation of, mined lands on which surface mining operations were conducted prior to January 1, 1976, and not since disturbed.
(f)
Effect of vested rights on areas of significance. Neither the designation of an area of regional or statewide significance nor the adoption of any regulation for such an area shall in any way limit or modify the rights of any person to complete any development that has been authorized pursuant to Business and Professions Code Div. 4, Pt. 2 (Business and Professions Code § 11000 et seq.), pursuant to the Subdivision Map Act (Government Code § 64410 et seq.), or by a building permit or other authorization to commence development, upon which such person relies and has changed that person's position to that person's substantial detriment, and, which permit or authorization was issued prior to the designation of such area pursuant to Public Resources Code § 2790. If a developer has by his or her actions taken in reliance upon prior ordinances and regulations obtained vested or other legal rights that in law would have prevented the County from changing such ordinances and regulations in a way adverse to his or her interests, nothing in this Section authorizes the State Board to abridge those rights
(g)
Permit; recording. No permit granted pursuant to this Section shall be effective until the same has been recorded by the County Recorder for all affected parcels and proof thereof given to the Director. An approved surface mining permit shall be considered null and void unless recorded within 24 months of final approval or such other time period as may be set by conditions of approval. One extension of time, not to exceed 12 months, may be granted. Phased projects may be recorded in phases.
(h)
Permit; notification to assessor. Subsequent to January 1, 1979, the Director shall notify the Assessor of Yuba County of any permits issued pursuant to this Section.
(i)
Permits; copies for board of supervisors. Subsequent to January 1,1979, the Director shall forward a copy of any permits issued pursuant to this Section to the Clerk of the Board of Supervisors. The Clerk shall maintain a permanent file of such permits.
(j)
Permit; revocation and modification. Upon 15 days ordinary mail notice which provides the time and place of public hearing and the reason(s) for revoking or modifying a permit and after public hearing, a permit granted or approved under this Section may be revoked or modified by the Planning Commission, in the event it finds a violation of the terms and conditions of the permit, reclamation plan, and/or financial assurances or for other good cause consistent with the purposes and objectives of this Section.
(k)
Noticed public hearing, action, and findings. Any hearing before the Planning Commission or the Board on a matter arising under this Section shall be after the giving of a public notice by ordinary mail no less than 15 days prior to the hearing to all residents and property owners within 500 feet of the parcel or parcels which are the subject of the hearing. The action and findings of the Planning Commission and the Board shall be set forth in writing.
(a)
Purpose. This article provides standards and procedures to regulate the development, siting, installation, and operation of wireless communications antennas and related facilities consistent with the applicable requirements of state and federal law. The regulations are intended to provide for the appropriate development of wireless communication facilities within the County to meet the needs of residents, business-owners, and visitors while protecting public health and safety and preventing visual blight and degradation of the community's aesthetic character.
(b)
Applicability and exemptions. The requirements of this article apply to all wireless communication facilities that transmit and/or receive electromagnetic signals, including but not limited to personal communications services (i.e. cellular, paging, data, and internet) and radio and television broadcast facilities. The requirements apply to communication facilities that are the primary use of a property and those that are accessory facilities, except that the following accessory facilities are exempt:
(1)
Licensed amateur (ham) radio and citizen band operations that do not exceed the maximum allowable building height for the zone district in which the antenna is located and are ancillary to a primary use on the same site.
(2)
Hand-held, mobile, marine, and portable radio transmitters and/or receivers.
(3)
Emergency services radio.
(4)
Carrier on wheels or cell on wheels (COW) are radio and television mobile broadcast facilities and are exempt when placed for a period of not more than 72 hours at any location unless an emergency or a disaster is declared by the Board of Supervisors
(5)
Antennas and equipment cabinets or rooms completely located inside of permitted structures.
(6)
A single ground- or building-mounted receive-only radio, internet or television antenna not exceeding the maximum height permitted by this Code, including any mast, or a receive-only radio, internet or television satellite dish antenna.
(7)
Any antenna or wireless communications facility that is exempt from local regulation pursuant to the rules and regulations of the Federal Communications Commission (FCC) or a permit issued by the California Public Utilities Commission (CPUC). The owner or operator of such facility shall provide the Planning Director with a copy of a current FCC or CPUC permit or a copy of applicable FCC regulations prior to its installation.
(8)
Ordinary maintenance of existing wireless facilities and wireless support structures.
(c)
Application requirements. Where approval of a use permit or zoning clearance is required, an applicant shall file a written application with the Planning Director pursuant to the application procedures in Chapter 11.53, Common Procedures, accompanied by the required fee as established in the County's fee schedule. Applications shall be submitted pursuant to application requirement handouts maintained by the County and as amended from time to time.
(1)
Zoning clearance required. The following require approval of a zoning clearance prior to installation or commencement of use:
a.
Eligible facilities requests, collocations, or removal or replacement of transmission equipment on an existing wireless tower or base station that does not result in a substantial modification as defined in this Code.
b.
COWs placed for a period greater than 72 hours (not part of a declared emergency or disaster) but not more than 120 days at any location.
c.
Wireless facilities placed on existing utility poles that do not increase the height of the pole by more than 15 feet and all equipment is located within the utility easement.
d.
New wireless support structures that are less than 150 feet in height, in any industrial or agricultural district or within the timber production or extractive zone districts. When a new facility is proposed to be located within an airport compatibility safety zone; the requirements of the airport overlay district shall apply. Those safety zones that conditionally allow for communication towers shall be processed as an administrative use permit (AUP) if exempt from CEQA and a minor conditional use permit if a CEQA document is required.
(2)
Administrative review and approval. The following require approval of an administrative use permit prior to installation or commencement of use:
a.
New wireless support structures greater than 150 feet in height, in any industrial or agricultural district or within the timber production or extractive zone districts.
b.
Camouflage wireless facilities that are 75 feet or less in height, in any non-residential district or rural community district.
c.
Substantial modifications as defined by this Code.
d.
COWs that that will be placed at a location for greater than 120 days.
(3)
Minor conditional use permit review and approval. The following require approval of a minor conditional use permit:
a.
Camouflage wireless facilities that are 60 feet or less in height, in any residential district.
b.
Camouflage wireless facilities that are greater than 75 feet in height in any non-residential or rural community districts.
c.
New wireless support structures less than 125 feet in height in any special purpose district.
(4)
Conditional use permit review and approval. The following require approval of a conditional use permit:
a.
Camouflage wireless facilities that are greater than 60 feet in height, in any residential district.
b.
New wireless support structures greater than 125 feet in height in any special purpose district.
c.
New wireless support structures in residential, rural community, or commercial and mixed-use districts or resource preservation and recreation, planned development or planning reserve zone districts.
(d)
Standards. All wireless communication facilities shall be located, developed, and operated in compliance with all of the following standards and with applicable standards of the zoning district in which they are located.
(1)
Location and siting.
a.
Within the valley growth boundary and rural communities, no new freestanding facility, including a tower, lattice tower, or monopole, shall be located within 1,000 feet of another freestanding facility, unless appropriate camouflage techniques have been used to minimize the visual impact of the facility to the extent feasible, or when it can be demonstrated that co-location on an existing pole or tower or camouflage techniques are not feasible.
b.
Countywide: All wireless communication facilities shall meet the building setback standards of the district which they are to be located unless due to topography or other site constraints a waiver to the setback is approved by the decision-making authority.
c.
Countywide: When feasible, providers of personal wireless services shall co-locate facilities in order to reduce adverse visual impacts. The decision-making authority may require co-location or multiple-user wireless communication facilities for new facilities based on a determination that it is feasible and consistent with the purposes and requirements of this article.
1.
When determined to be feasible and consistent with the purposes and requirements of this article, the applicant shall make unused space available for future co-location of other wireless communication facilities, including space for different operators providing similar, competing services.
(2)
Support structures. Support structures for wireless communication facilities shall be any of the following:
a.
A single pole (monopole) sunk into the ground and/or attached to a foundation. Any new monopole should be constructed to allow for co-location of at least one other similar wireless communications provider.
b.
A monopole mounted on a trailer or a portable foundation if the use is for a temporary wireless communications facility (COW).
c.
An existing non-residential building.
d.
An existing structure other than a building, including, but not limited to, light poles, electric utility poles, water towers, smokestacks, billboards, lattice towers, and flag poles. This term includes an electric utility pole erected to replace an existing electric utility pole, if the replacement pole will serve both electric and wireless communications functions, and if the replacement pole is substantially equivalent to the predecessor pole in placement, height, diameter and profile.
e.
An alternative tower structure such as a clock tower, steeple, functioning security light pole, functioning recreational light pole, or any similar alternative-design support structure that conceals or camouflages the wireless telecommunication facility. The term "functioning" as used herein means the light pole serves a useful and appropriate lighting function as well as a wireless communications function.
f.
Existing publicly-owned and operated monopole or a lattice tower.
(3)
Height requirements.
a.
Freestanding antenna or monopole. The height of a freestanding antenna or monopole should be limited to what is necessary to provide adequate service and coverage while still providing opportunities for co-location or future expansion.
b.
Building-mounted facilities. Building-mounted wireless telecommunication facilities shall not exceed a height of 15 feet above the height limit of the district or 15 feet above the existing height of the legally established building or structure that is located on, whichever is higher, measured from the top of the facility to the point of attachment to the building.
c.
Facilities mounted on structures. Wireless telecommunication facilities mounted on an existing structure shall not exceed the height of the existing structure unless camouflaged as part of the structure design, except antennas may extend up to 15 feet above the height of an electric utility pole.
(4)
Design and screening. Wireless telecommunication facility structures and equipment shall be located, designed and screened to blend with the existing natural or built surroundings, as well as any existing support structures, so as to reduce visual impacts to the extent feasible.
a.
Screening of base stations. Within the valley growth boundary with the exception of industrial zone districts, equipment cabinets and buildings, and associated equipment such as air conditioning units and emergency generators, shall be screened from view by a wall or solid fence and landscaping, as approved by the County. Any wall shall be architecturally compatible with the building or immediate surrounding area. Equipment cabinets and related facilities located in industrial zone districts and outside the valley growth boundary shall be fenced or screened with landscaping when located within 100 feet of a public right-of-way. Existing terrain and vegetation may be counted towards screening requirements.
b.
Lighting. Artificial lighting of a wireless telecommunication facility, including its components, is prohibited, unless required by the Federal Aviation Administration. A motion-sensor light may be used for security purposes if the beam is directed downwards, shielded from adjacent properties, and kept off except when personnel are present at night.
c.
Advertising. No advertising shall be placed on wireless telecommunication facilities, equipment cabinets, or associated structures.
(5)
Security and maintenance requirements. All facilities shall be designed to minimize opportunities for unauthorized access, climbing, vandalism, graffiti, and other conditions that would result in hazardous conditions, visual blight, or attractive nuisances.
a.
Fencing. Security fencing and walls shall not exceed ten feet in height. Chain link fencing is prohibited within the valley growth boundary with the exception of industrial zone districts. In industrial zone districts and outside the valley growth boundary, no chain link fences shall be visible from public view (typically within 100 feet of a right-of-way unless screened by existing terrain or vegetation).
b.
Maintenance. The permittee shall be responsible for maintaining the site and facilities free from graffiti. Where landscaping is provided it shall be irrigated and maintained for the life of the project.
c.
Removal of facilities. The operator of a wireless communication facility must remove all unused or abandoned equipment, antennas, poles or towers within 30 days of abandonment. The facility shall be deemed abandoned if it has not been operational for a consecutive 90-day period.
(6)
Radio frequency standards; noise.
a.
Radio frequency. Wireless telecommunication facilities shall comply with federal standards for radio frequency emissions and interference. Failure to meet federal standards may result in termination or modification of the permit.
b.
Noise. Wireless telecommunication facilities and any related equipment, including backup generators and air conditioning units, shall not generate continuous noise in excess of the noise standards established in Yuba County Code Chapter 8.20, Noise Regulations. Backup generators shall only be operated during power outages and for testing and maintenance purposes. Testing and maintenance shall only take place between the hours of 7:00 a.m. and 10:00 p.m.
(7)
Fire prevention. All wireless telecommunication facilities shall be designed and operated in a manner that will minimize the risk of igniting a fire or intensifying one that otherwise occurs.
(8)
Surety bond. As a condition of approval, an applicant for a building permit to erect or install a wireless telecommunication facility shall be required to post a cash or surety bond in a form and amount acceptable to the County to cover removal costs of the facility in the event that its use is abandoned or the approval is otherwise terminated.
(9)
Required findings.
a.
General findings. The decision-making authority may approve or approve with conditions any use permit or zoning clearance required under this article after making the following findings in addition to any other findings required by this Code:
1.
The proposed use conforms with the specific purposes of this article and any special standards applicable to the proposed facility;
2.
The proposed communication facility is a co-location or camouflage facility or the applicant has provided reasonable justification to demonstrate that a co-location or camouflage facility is not feasible and a new ground-mounted antenna, monopole, or lattice tower is needed;
3.
The proposed site and wireless communication facility has been designed to achieve compatibility with the surrounding community and limit environmental impacts to the extent reasonably feasible in accordance with the provisions of this Chapter.
b.
Additional findings for facilities in a residential districts and public facilities. To locate a facility in a residential district where it is readily visible from the habitable area of a dwelling unit within 300 feet, or at any location where it is readily visible from a public right-of-way, public park, or other public recreation or cultural facility, the decision-making authority shall find that:
1.
It is not feasible to provide the service at another location; or to incorporate additional measures such as a decrease in height, increase in setback, change in design, relocation relative to other structures or natural features, that would further reduce its visibility; and
2.
The proposed facility provides an important link in applicant's service area build-out and is necessary to provide personal wireless services to County residents.
c.
Additional findings for any other exception to standards. The decision-making authority may waive or modify requirements of this article upon finding that strict compliance would result in noncompliance with applicable federal or State law.
(a)
Transitional and supportive housing constitute a residential use and are subject only to those restrictions that apply to other residential uses of the same type in the same zoning district. Supportive housing is also permitted by right in nonresidential zones permitting multifamily uses, if the proposed housing development satisfies the following requirements:
(1)
Units within the development shall be subject to a recorded affordability restriction for 55 years.
(2)
All units, excluding managers' units, within the development shall be dedicated to lower-income households, provided they are receiving public funding to ensure affordability of the housing to lower-income Californians.
(3)
At least 25 percent of the units in the development, or 12 units, whichever is greater, shall be restricted to residents in supportive housing who meet criteria of the target population. If the development consists of fewer than 12 units, 100 percent of the units (excluding managers' units) in the development shall be restricted to residents in supportive housing who meet criteria of the target population.
(4)
Per Section 65652 of the California Government Code, the developer shall provide the County with a plan for providing supportive services, and include documentation demonstrating that supportive services will be provided on site to residents in the project, and shall include all of the following information:
a.
The name of the proposed entity or entities that will provide supportive services.
b.
The proposed funding source or sources for the provided on-site supportive services.
c.
Proposed staffing levels.
(5)
Nonresidential floor area shall be used for on-site supportive services in the following amounts:
a.
For a development with 20 or fewer total units, at least 90 square feet shall be provided for on-site supportive services.
b.
For a development with more than 20 units, at least three percent of the total nonresidential floor area shall be provided for on-site supportive services that are limited to tenant use, including, but not limited to, community rooms, case management offices, computer rooms, and community kitchens.
(6)
Units within the development, excluding managers' units, shall include at least one bathroom and a kitchen or other cooking facilities, including, at minimum, a stovetop, a sink, and a refrigerator.
(7)
If the developer replaces any dwelling units on the site of the supportive housing development, the units subject to these provisions shall be replaced as specified in subdivision (c) of Government Code § 65915.
This Section establishes standards for certain temporary uses and special events that are intended to be of limited duration of time and that will not permanently alter the character or physical facilities of the site where they occur. This Section also provides standards for longer term special events and event centers.
(1)
Arborist office. On-site temporary arborist offices are permitted in conjunction with an approved zoning clearance during the period of arborist work. The office shall be shut down immediately upon completion of arborist project.
(2)
Construction office trailers. On-site temporary construction offices are permitted in conjunction with an approved construction project during the period of construction with a building permit. The trailer shall be removed immediately upon completion of the construction project, or the expiration of the building permit.
(3)
Construction yards. Contractors' construction yard(s) are permitted in conjunction with an approved construction project. The construction yard shall be removed immediately upon completion of the construction project, or the expiration of the building permit. Off-site construction yards for capital improvement projects require approval of a zoning clearance; all other off-site construction yards require approval of a temporary use permit. No zoning clearance is required for on-site contractors 'construction yards. A performance bond for removal and site clean-up may be required as determined by the Community Development and Services Agency Director.
(4)
Garage sales. Garage sales of personal property conducted by a resident of the premises may be conducted in accordance with the following standards:
a.
No permit or clearance required. Garage sales are allowed by right, and require no zoning clearance, if they meet all of the following standards:
1.
Garage sales shall be conducted by a resident of the premises and goods shall be limited to personal property.
2.
Items offered for sale shall be limited to the personal property not acquired for resale, and either owned by the resident(s) of the dwelling unit where the sale is to be conducted or by another person participating in the sale with the resident.
3.
No more than four garage sales shall be conducted on a site in any calendar year.
4.
No single sale event shall be conducted for longer than three consecutive days.
5.
Garage sales may be conducted during daylight hours.
b.
Garage sales that exceed these thresholds shall be considered temporary sales events.
(5)
Subdivision-related temporary uses (model home complexes). Certain temporary structures and uses associated with an approved subdivision are allowed with a temporary use permit.
a.
Permitted uses. The following uses and structures may be allowed with a temporary use permit, subject to the procedures of Chapter 11.58, Temporary Use Permits, in connection with a subdivision of 20 or more lots with an approved tentative map.
1.
Up to six model homes;
2.
A temporary building used as a contractor's office; and
3.
A real estate sales office in connection with marketing of a subdivision.
b.
Standards.
1.
All such uses must be located within the subdivision.
2.
The uses are allowed in connection with a subdivision of 20 lots or more with an approved tentative map.
3.
A real estate sales office may be located within a new residence that is part of the development or within a temporary building.
4.
Model homes may be used in conjunction with an approved temporary tract office but not a general real estate business.
5.
At the end of the approved time period, structures shall either be removed or restored for a use permitted in the zone where they are located.
c.
Time limits and extensions.
1.
The temporary structures and uses may be granted for an initial period of no more than two years.
2.
The zoning administrator may renew said permits for up to additional one-year periods upon written application at least 30 days prior to expiration.
(6)
Temporary housing. Temporary housing for family members or care givers may be granted in certain zones, as specified in Division II, Base and Overlay Districts, in order to prevent the dislocation of families and to allow for in-home care of certain individuals by family members where such care is needed.
a.
Temporary use permit required. Establishment of a temporary housing requires approval of a temporary use permit, pursuant to the procedures of Chapter 11.58, Temporary Use Permits.
b.
Standards.
1.
The lot on which a temporary permit for a temporary housing is granted must meet the same setbacks as that required for the primary residence. At least ten feet of separation shall be provided between the primary residence and temporary housing.
2.
The project must comply with all other statutes and ordinances relating to health and building codes. Due to the temporary nature of the housing, capital facility fees shall not be collected.
3.
The occupants of the temporary housing shall be limited to: relatives of the property owner; a licensed caregiver needed to care for a member of the primary household; or a caretaker of the property.
4.
Conditions/recorded agreement. The applicant shall sign an agreement that at the conclusion of the permit or upon violation thereof, the temporary housing shall be removed from the property or the County may be authorized to remove the residence and record a lien on the property for the cost thereof. Such agreement may be recorded.
c.
Time limits and extensions.
1.
A temporary use permit to allow temporary housing shall be granted for no more than a two-year period. The applicant may apply for additional two-year extensions, not to exceed a total of six years unless approved by the CDSA Director.
2.
A temporary use permit to allow a temporary housing unit shall expire if the temporary residence is removed from the property or if the residence is no longer occupied by a qualifying relative or the TUP has not been renewed.
(7)
Temporary emergency shelters. Temporary emergency shelters, as defined in Chapter 11.72, Use Classifications, are permitted according to the following standards. (For permanent shelters, see Section 11.32.100, Emergency Shelters.)
a.
Zoning clearance. Temporary emergency shelters in any zoning district are permitted with a zoning clearance if they meet all of the following standards:
1.
The shelter will operate for no more than 26 days in any 90-day period.
2.
No other temporary emergency shelter may be operated within 500 feet during the same 90-day period.
b.
No permit or clearance required. Facilities providing lodging and other services during a declared emergency are exempt from the above requirement for a CDSA Clearance.
(8)
Temporary sales events. Temporary sales that meet the standards of this Subsection are permitted for up to seven days within a 90 day period. Sales events for a longer period or that exceed the standards may be allowed with a temporary use permit.
a.
General requirements. The following requirements apply to all temporary sales events:
1.
Location. Sales events are limited to non-residential districts. The sales event must be conducted solely on private property and not encroach within the public right-of-way or occupy needed parking at the time of the event.
2.
Location of the displayed merchandise must not disrupt the normal circulation of the site, nor encroach upon driveways, pedestrian walkways, or required landscaped areas, or obstruct sight distances or otherwise create hazards for vehicle or pedestrian traffic.
3.
Events shall comply with Chapter 8.20, Noise Regulations, of the County Code.
b.
Seasonal sales. The annual sales of Christmas trees, pumpkins, fireworks and similar items on private property is permitted, provided that the following standards are met:
1.
Seasonal sales shall comply with the general requirements listed in Section 11.32.320(7)a.
2.
Time period. Christmas tree sales are permitted from Thanksgiving Day through December 31st. Seasonal sales associated with other holidays are permitted up to a month preceding and one week following the holiday.
3.
Goods, signs and temporary structures. All trees, pumpkins, or other items for sale, as well as signs and temporary structures, shall be removed and the site shall be returned to its previous condition within five days of the end of sales. A clean-up deposit may be required.
4.
Seasonal sales on undeveloped properties require approval of a zoning clearance and property owner's authorization.
c.
Longer-term sales events. Other special sales events and displays that exceed the time limits of this Section may be allowed with the approval of a temporary use permit, pursuant to the procedures of Chapter 11.58, Temporary Use Permits and subject to the following standards:
1.
Location. Events are limited to non-residential districts.
2.
Existing business. Temporary outdoor sales shall be part of an existing business on the same site.
3.
Maximum duration. The duration of such special sales events shall be established by the temporary use permit but in no case shall exceed a period of three months.
4.
Signs. Outdoor uses may include the addition of one nonpermanent sign up to a maximum size of ten square feet in area, subject to Chapter 11.27, Signs.
5.
Existing parking. The available parking shall not be reduced to less than 75 percent of the minimum number of spaces required by Chapter 11.25, Parking and Loading.
(9)
Fairs, festivals, and other special events within the valley growth boundary. Fairs, festivals, and other special events that are general open to the general public (e.g., craft fairs, art shows, cultural festivals, carnivals, recreational events) located on private property may be permitted with a zoning clearance, subject to the following standards:
a.
Time limit. Special events under this Subsection may not operate for more than three consecutive or ten total days per year. A longer period may be requested with a temporary use permit or minor use permit pursuant to thresholds in Section 11.32.320, Temporary Uses and Special Events, Sections 1.2 and 1.3 and Table 11.32.320.
b.
Hours of operation. When located adjacent to a residential district, the hours of such special events shall be limited to between 8:00 a.m. to 10:00 p.m.
c.
Location. Events are limited to areas within nonresidential districts, or on land owned by a school, church or other public or quasi-public facility.
d.
Site circulation. Temporary events shall not block accessible pathways or parking spaces, public rights-of-way, sidewalks, or impede on-site circulation and parking for either the event or any businesses that are operating on the site, subject to approval by the Public Works Director and the local fire district.
e.
Noise. Events shall comply with Chapter 8.20, Noise Regulations, of the County Code.
f.
Other permits. Special events shall obtain any and all permits required by other agencies or other sections of the County Code (i.e. food vendor permits from Environmental Health).
(10)
Special events outside the valley growth boundary or on lots with permitted agricultural uses. Special events on property outside the valley growth boundary or on lots with agricultural uses are subject to the following standards:
a.
Special events—Permitted. The following types of temporary uses may be conducted without a temporary use permit. Other permits, such as zoning clearances, may be required.
1.
No more than five events or ten total days per year per site shall occur per calendar year.
2.
The capacity of each event shall not exceed 100 persons at one time and all parking is contained onsite.
3.
Events shall be limited in duration to no more than three consecutive days (ten days per year total). Outdoor events shall only occur between the hours of 8:00 a.m. to 10:00 p.m.
4.
Temporary sanitation facilities shall be provided to handle the additional occupant loading.
5.
No permanent structures shall be constructed or grading activities directly related to the special event shall be permitted.
6.
Outdoor music that is amplified shall be limited to 8:00 a.m. to 9:00 p.m. and shall not exceed 45 decibels measured at the property line.
b.
Special events requiring a temporary use permit. Special events that exceed the thresholds of Subsection 11.32.320(10)a., Special Events—Permitted, above, may be allowed with a temporary use permit, subject to the following provisions:
1.
Such events shall be limited to no more than 12 events or 24 days per site per calendar year.
2.
The capacity of each event shall not exceed 250 persons at any one time and all parking is contained onsite and reviewed and approved by the local fire department.
3.
Events shall be limited in duration to no more than three consecutive days.
4.
Parking and assembly areas shall be located in such a manner as to avoid impacts to sensitive habitat.
5.
Temporary sanitation facilities shall be provided, as required by the Environmental Health Director.
6.
Any outdoor music shall meet County noise standards. Amplified music or amplified speech shall comply with Chapter 8.20, Noise Regulations, of the County Code. For any events with amplified sound, occurring between 7:00 p.m. and 9:00 p.m., a noise analysis shall be submitted to the Planning Department demonstrating that the noise standards will not be exceeded. No outdoor music will be allowed after 9:00 p.m. This Subsection does not permit concerts or other live, outdoor amplified music where the music is the primary attraction. (See Chapter 8.70, Outdoor Music Festivals, for events involving outdoor music for more than 200 attendees.)
c.
Special events requiring a minor use permit (special event centers). The following uses require a minor use permit:
1.
Temporary campgrounds associated with a special event exceeding 48 hours in duration.
2.
Concerts or other live, outdoor amplified music where the music is the primary attraction. (See also Chapter 8.70, Outdoor Music Festivals, of the County Code.)
3.
Required findings. In order to approve a minor use permit for a special event center, the Development Review Committee shall make the following findings in addition to the findings for approval of a use permit in Section 11.57.060.
i.
The proposed use does not detract from or diminish the on-site crop production uses.
ii.
There is no adverse effect on agricultural production or public health and safety on surrounding properties.
(11)
Other temporary uses. If a temporary use is proposed that is not listed or addressed in this Section or another section of this Code, the Planning Director shall determine the most similar temporary use, and the proposed use will be subject to the same standards and procedures as the most similar use.
For purposes of this Section, the regulations associated with wineries also pertain to olive oil, micro-brewery and micro-distillery production facilities. Wineries and tasting rooms shall be developed, located and operated in conformance with the following standards:
(1)
Wineries. The growing and harvesting of grapes, olives, fruit, hops and other products suitable for processing and bottling of wine, olive oils, beer and distilled beverages or products.
a.
Milling, pressing, processing, and bottling of grapes, olives, beer and distilled beverages is principally permitted in agricultural districts, in the rural residential zone district up to 5,000 cases per year (case = case of wine or equivalent in olive oil, beer or distilled beverage), and permitted through approval of an administrative use permit in the residential estate district.
b.
Processing of more than 5,000 cases per year shall be subject to approval of a minor conditional use permit within the rural residential and residential estate districts.
c.
Incidental uses. Tasting rooms pursuant to Section 11.32.330.B; retail sales, special events, lodging, and agricultural recreation and entertainment are permitted as incidental uses to a permitted winery in accordance with regulations listed under Section 11.32.230, Ranch Marketing and Section 11.32.320, Temporary Uses and Special Events.
(2)
Tasting rooms.
a.
Accessory use. Tasting facilities shall be clearly related to the winery with the focus of the tasting facilities on the marketing and sale of the products grown and/or processed on the site or neighboring properties under the same ownership and/or lease.
b.
Maximum size. Tasting rooms are subject to the size limits listed in Table 11.32.330(2) below:
c.
Complimentary food items for on-site consumption. Complimentary food items including but not limited to fruit slices, cheese, and crackers, may be offered to customers along with tastings, provided that:
1.
Food items are not advertised on signage; and
2.
Such food is prepared in a facility approved by the Yuba County Department of Environmental Health and handled in accordance with the California Health and Safety Code.
d.
Merchandise and prepackaged food sales. Tasting rooms may engage in the retail sale of the following items, provided that the aggregate area for the display of all such items occupies no more than 15 percent of the area of the tasting room.
1.
Product-related merchandise. Incidental merchandise relating to the use and consumption of the product that is the subject of the tasting room, including but not limited to wine glasses, corkscrews, accessory clothing, key chains, and pens.
2.
Value-added agricultural products. Packaged food for off-site consumption, including but not limited to jam, jellies, olives, and olive oil, provided that:
i.
The packaged food is produced from agricultural products grown on lots or parcels of land owned or leased by the holder of a Type 02 license issued by the California State Department of Beverage Control;
ii.
The associated producer's logo is permanently and prominently affixed to all food sold; and
iii.
The packaged food is prepared and offered in accordance with any and all regulations and/or requirements of the applicable government agencies regarding the preparation, licensing, and inspection of such packaged food.
3.
Pre-packaged foods. Prepackaged food items intended to complement the product that is the subject of the tasting room, including but not limited to crackers, for off-site consumption. These shall be non-potentially hazardous prepackaged food products from an approved source.
e.
Picnic areas. Picnic areas may be provided but shall be subordinate to the tasting room.
f.
Utilities. Sanitary facilities and potable water shall be provided pursuant to applicable codes.