- DEFINITIONS AND RULES OF CONSTRUCTION
For the purposes of the provisions of this appendix, the following rules of construction of language shall apply:
(a)
The specific shall control the general.
(b)
All words used in the present tense include the future tense.
(c)
All words used in the singular include the plural and the plural includes the singular.
(d)
The word "person" includes a firm, association, organization, partnership, trust, company, or corporation, as well as an individual.
(e)
The words "shall," "must," "will," and "may not" are mandatory, meaning an obligation to comply with the particular provision.
(f)
The word "may" is permissive.
(g)
The word "includes" or "including" shall not limit a term to the specified examples, but is intended to extend its meaning to all other instances or circumstances of like kind or character.
(h)
The word "yard" shall mean the required minimum yard.
(i)
References to "days" shall be construed to be business days, excluding weekends and holidays, unless the context of the language clearly indicates otherwise.
(j)
When used with numbers, "up to x," "not more than x," and "a maximum of x," all include x.
(k)
"And" indicates that all connected items or provisions apply.
(I)
"Or" indicates that the connected items or provisions may apply singly or in combination.
(m)
"Either … or" indicates that the connected items or provisions apply singly, but not in combination.
For the purposes of this appendix, the following terms, use types, and words shall be defined as set forth below, unless otherwise provided in this appendix.
Abut or abutting: Having a common border with, or being separated from such a common border only by a street, alley, stream, or railroad tracks.
Access: A means of approach or admission.
Accessory structure: A structure detached from but located on the same lot as a principal building and customarily accessory and clearly incidental and subordinate to the principal building and used for purposes customarily incidental to that of the principal building.
Accessory use: A use of land or a structure, or portion thereof, which is customarily accessory and clearly incidental and subordinate in area, extent, and purpose to the principal use of the land or structure and located on the same lot as such principal use. An accessory use may not be accessory to another accessory use.
Active solar collector: Any device or combination of devices or other element which relies on sunshine as an energy source and is capable of collecting not less than 25,000 BTUs on a clear day for use in one or more of the following:
(1)
The heating or cooling, or both, of a building or other structure;
(2)
The heating of water;
(3)
Industrial, commercial or agricultural processes; or
(4)
The generation of electricity.
The use of the solar collector may include other purposes such as serving as part of a roof of a structure, serving as a window or wall, or otherwise serving as a structural member of a structure.
Adult use: As defined and set forth in section 6-4 of this appendix.
Agricultural operations: The use of property for the production of agricultural, horticultural, or floricultural products including livestock, poultry, eggs, dairy products, vegetables, trees, or similar products. A "community garden" or a garden accessory to a residential use shall not be deemed an agricultural operation. Agricultural operations shall not include principal industrial uses related to food processing or distribution.
Amateur radio tower: A freestanding or building-mounted structure, including any base, tower or pole, antenna, and appurtenances, intended for noncommercial airway communication purposes by a person holding a valid amateur radio operator licensed by the federal communications commission (FCC).
Amphitheater: An open-air (outdoor) establishment for the performing arts consisting of a central space or stage for performances, which may be open to the sky or partially covered or enclosed, and open-air tiered or sloped seating for audiences, generally arranged in a semi-circular pattern in relation to the performance area.
Amusement, indoor, commercial: An establishment primarily engaged in the provision of multiple amusement or entertainment devices or machines or games of skill, chance, or scoring to the general public for a fee, and where all such activity occurs enclosed in a building. Such games and devices include billiards, pool, table tennis, dartboards, foosball, pinball, video games, and other similar amusement or entertainment devices, whether or not they are coin or token operated or require the payment of money to have them activated. Typical uses include game rooms, billiard and pool halls, and video arcades. "Commercial indoor amusement" establishments may include accessory uses, such as snack bars, which are designed and intended primarily for the use of patrons of the amusement use. "Commercial indoor amusement" does not include a "Gun-firing range" or any use which is otherwise specifically listed in the use tables in article 4 of this appendix.
Antenna: Any apparatus, or group of apparatus, designed for transmitting or receiving electromagnetic waves that includes, but is not limited to, telephonic, radio, or television communications. Antennas include dish antennas, panel antennas, whip antennas, or similar devices used for broadcast, transmission, or reception of radio frequency signals, but do not include satellite earth stations. For purposes of this definition, the following definitions shall apply:
(1)
Dish antenna: A parabolic, spherical, or elliptical antenna intended to receive wireless telecommunications.
(2)
Panel antenna: A directional antenna designed to transmit or receive signals in a directional pattern that is less than 360 degrees.
(3)
Whip antenna: A cylindrical, omnidirectional antenna designed to transmit or receive signals in a 360-degree pattern
Applicant: The party applying for approval of a zoning permit, sign permit, certificate of occupancy, certificate of appropriateness, or site plan, requesting the approval of a rezoning, conditional rezoning, conditional use, or variance, or appealing a decision of the zoning administrator, as required by this appendix.
Application: The completed form(s) and all accompanying documents, exhibits, and fees required of an applicant for review, approval, or permitting purposes for a zoning permit, sign permit, certificate of occupancy, certificate of appropriateness, site plan, rezoning, conditional rezoning, conditional use, variance, or an appeal of a decision of the zoning administrator.
Appurtenance: A feature or structure attached to a building that is used for or in connection with a building, incidental to such building and for its benefit.
Assembly hall: A building designed for public assembly for special events or regularly scheduled programs, and available to the general public for a fee. Typical events or programs include banquets, meetings, seminars, receptions, and weddings.
Automobile dealership: An establishment which displays for sale or lease, from the premises, new and/or used automobiles, sport utility vehicles, pick-up trucks, vans, or motorcycles for sale or lease, and which establishment may engage in the performance of warranty repair work and other major and minor repair and maintenance service conducted as an accessory use. Such use may include the incidental towing of vehicles to the lot expressly for the purposes of scheduled repair by the automobile dealership establishment. This use type does not include the storage of wrecked or abandoned vehicles. The exterior display of motor vehicle inventory for sale or lease shall be considered an outdoor showroom for customers to examine and compare products and shall not be considered "outdoor storage" for purposes of this appendix, provided such exterior display is limited to such motor vehicle inventory, is accessible to the general public, and does not include materials, parts, or similar products. Excluded from this use type is "Equipment sales/rental."
Automotive parts/supply, retail: The retail sales of automobile parts and accessories. Typical uses include automobile parts and supply stores which offer new and factory rebuilt parts and accessories. This use type does not include establishments dealing exclusively in used parts.
Bakery, confectionary, or similar food production, retail: An establishment primarily engaged in the preparation, cooking, baking, and retail sale of baked products, confectionary products, or similar food products on the premises. The retail sale of such food products is intended primarily for off-site consumption, but such use may include incidental food service on-site. While on-site retail sales is a required component of this use, this use may also include the wholesale sales of such food products.
Bakery, confectionary, or similar food production, wholesale: An establishment engaged in the preparation, cooking, baking, and selling of baked products, confectionary products, or similar food products intended solely for wholesale sales or institutional off-premises distribution, and where over-the-counter or other retail dispensing of baked products, confectionary, or similar prepared food products does not occur.
Basement: That portion of the building partly underground, but having more than half its clear height below the average grade of the adjoining ground. A basement shall not be considered a story.
Bed and breakfast: An owner-occupied, single-family detached dwelling in which bedrooms are provided to overnight guests for compensation, on a daily or weekly basis, and offering breakfast meals to each guest to whom overnight lodging is provided. The serving of meals other than breakfast, or the serving of breakfast to other than overnight guests, shall be considered a "Restaurant."
Beverage or food processing: A facility where beverages or foods, excluding poultry and animal slaughtering and dressing, are produced or processed and packaged for local, regional, or national distribution. This use type includes beverages, bottled water production, breweries, bottling facilities, dairy product processing or bottling, canned and preserved fruit and vegetables and related processing, ice plants, and miscellaneous food preparation from raw products. This use type does not include meat packing or poultry processing, "Bakery, confectionary, or similar food production, wholesale," or any use which is otherwise specifically listed in the use tables in article 4 of this appendix.
Board of architectural review: The board of architectural review of the Town of Clifton Forge, Virginia.
Board of zoning appeals: The board of zoning appeals of the Town of Clifton Forge, Virginia.
Boarding house: A dwelling, or portion thereof, where up to, but not more than, six furnished bedrooms are provided for lodging for compensation on a weekly, monthly, or longer basis, where no more than a total of six persons reside, where the rental or leases are for definite periods of time, where such establishment is not open to the public or overnight guests, and where the owner or operator resides on the premises. No meals are provided to outside guests. Such establishments provide a common kitchen facility and shared bathroom facilities. Included in this use type are rooming houses and boarding houses.
Body piercing establishment: An establishment which engages in the act of penetrating the skin to make a hole, mark, or scar, generally permanent in nature. For purposes of this definition, "body piercing" does not include the use of a mechanized, pre-sterilized ear piercing system that penetrates the outer perimeter or lobe of the ear, or both. A body piercing establishment is classified as a "Personal services establishment."
Botanical garden: A public or private facility for the demonstration and observation of the cultivation of flowers, fruits, vegetables, or ornamental plants.
Brewpub: A restaurant/brewery that sells the majority of its beer on site, which beer is brewed primarily for sale in the restaurant and on-site bar. The beer is often dispensed directly from the brewery's storage tanks. Where allowed by law, brewpubs may sell beer "to go" and/or distribute to off-site accounts. Off-site sales are limited and are not the principal use. A "brewpub" is classified as a "Restaurant."
Buffer yard: A strip of land, which may have trees and shrubs planted or solid fences or walls installed, for screening purposes, designed to set apart and protect one space or activity from an adjacent space or activity.
Building: A structure with a roof supported and wholly enclosed by walls and intended for shelter, housing, or enclosure of persons, animals, activity, process, equipment, goods, or materials of any kind.
Building Code: The Uniform Statewide Building Code, adopted pursuant to the Code of Virginia, as amended, and section 22-25 of this Code.
Building facade or building face: That portion of any exterior elevation on a building extending from grade to top of the parapet, wall, or eaves along the entire width of the building elevation. In this appendix, the terms "building facade" and "building face" have the same meaning and may be used interchangeably.
Building facade, primary: That building facade which faces a public right-of-way and contains the principal entrance to the building.
Building frontage: The horizontal linear dimension of the exterior wall of a building that faces upon a public street or which building wall contains the public entrance.
Building height: See "Height of structure."
Building line: A straight line extending along the front, side, or rear of a building, parallel to the street right-of-way, which passes through the point of the principal building nearest that street right-of-way. Such point shall be 30 inches or greater above the graded ground level and shall exclude any permitted front yard encroachments. (See Figure 11-1.)
Figure 11-1. Building Line
Building setback line: The required minimum distance between the closest projection of a building, which projection is 30 or more inches above grade, and the front lot line or, where applicable, the centerline of the abutting street right-of-way which constitutes the lot front. All area between the required building setback line and the front lot line shall constitute a required yard. (See Figure 11-2.)
Figure 11-2. Building Setback Line
Building maintenance services: An establishment engaged in the cleaning of dwellings, offices, or places of business, or providing exterminating services, and rendering such service on a fee or contract basis.
Business or nonindustrial trade school: A specialized instructional establishment that provides education or training in business, commerce, vocations, trades, or other similar activity or occupational pursuits of a non-industrial nature, and not otherwise defined as "Educational facilities, college/university," "Educational facilities, primary/secondary," or "Home occupation." Typical vocations include accounting, data processing, computer repair, secretarial, barbering or hair dressing, and other trades, activities or occupations of a non-industrial nature. Incidental instruction services in conjunction with another principal use shall not be considered a business or non-industrial trade school.
Business support services: An establishment engaged in the sale, leasing, or repair of office equipment, supplies and materials, or the rendering of services used by office, professional, and service establishments. Typical uses include office equipment and supply firms, small business machine repair shops, convenience printing and copying establishments, blueprinting and photo-stating services, lithographic services, commercial art and graphic design services, management and consulting services, office security services, advertising and mailing services, data and records storage, temporary labor services, and other professional, scientific, or technical services or administrative or support services not otherwise specifically listed in the use tables in article 4 of this appendix.
Canopy: A structure made of permanent construction without pillars or posts, which is totally or partially attached to a building for the purpose of providing shelter to patrons or motor vehicles, or as a decorative feature on a building wall. A canopy is not a completely enclosed structure and cannot be raised or retracted. A freestanding, permanent cover, open on at least three sides and located over an outdoor service area, such as a gas pump island, shall also be considered a canopy.
Carport: A roofed space, open on three sides, one story in height, covered with a flat or hipped roof and ordinarily used as a shelter under which vehicles are driven or temporarily parked.
Car wash: An establishment where, for compensation, the washing, cleaning, or waxing of motor vehicles, including cars, vans, sport utility vehicles, and pick-up trucks, is conducted. Car washes include manual facilities where cleaning is performed by employees of the facility, automatic facilities using conveyors and blowers, and self-service facilities in which cleaning equipment and facilities are available for use by members of the public, including coin-operated equipment. The term "car wash" includes auto detailing services, but does not include facilities that wash or steam-clean engines, buses, trailers, tankers, or tractor-trailers. This use type does not apply to the washing of commercial fleets as an accessory use to the principal use with which the fleet is associated.
Caterer, commercial: The service of preparing and delivering food for off-site consumption at special events, including corporate activities, banquets, parties, weddings, and similar functions, for a fee, with such service generally including the serving of food at such special function. For purposes of this definition, a "commercial caterer" does not include catering services associated with a principal use having a retail component including a "Restaurant" or "Bakery, confectionary, or similar food production, retail."
Cemetery: Any land or structure used or dedicated to be used for the interment of human remains, either by earth burial, entombment in a mausoleum vault or crypt, inurnment of ashes in a columbarium, or a combination thereof, together with all uses necessarily or customarily associated with interment of human remains, benches, ledges, walls, graves, roads, paths, landscaping, and soil storage consistent with federal, state, and local laws on erosion and sediment control. A "cemetery" may include a chapel, funeral home, and necessary administrative offices, and maintenance and storage areas, provided they are located and completely operated within the boundary of the cemetery and are accessory to the cemetery. The sprinkling of ashes or their burial in a biodegradable container on church grounds or their placement in a columbarium on church property shall not constitute the creation of a "cemetery."
Circuit court: The circuit court of Alleghany County in the Commonwealth of Virginia.
Clinic: A facility providing medical, psychiatric, or surgical service for sick or injured persons exclusively on an out-patient basis including emergency treatment, diagnostic services, training, administration, and services to outpatients, employees, or visitors. The term "clinic" includes immediate care facilities, where emergency treatment is the dominant form of care provided at the facility.
Club: Buildings or facilities, or portion thereof, owned or operated by a nonprofit corporation, association, or other formal association of persons for private social, civic, educational, or recreational purposes, to which access is restricted to members of such groups and their guests, and which is not operated primarily for profit or to render a service which is customarily carried on as a business. Such principal use may include accessory uses such as recreational and banquet facilities. A "club" does not include a building in which members reside.
Commercial: Any wholesale, retail, or service business activity established to conduct trade for a profit.
Commercial motor vehicle: Any motor vehicle or trailer used, designed, or maintained for the transportation of persons or property for compensation or profit, and which is one of the following types of vehicles: truck, tractor cab, farm tractor, construction equipment, motor passenger bus (excluding school bus currently used by a public or private institution of learning), trailer, semi-trailer, taxi, limousine, tow truck, dump truck, roll back tow truck, flatbed truck, or step van, but not including a van, pickup truck, and panel truck.
Communications services: An establishment primarily engaged in the provision of broadcasting and other information relay services accomplished through the use of electronic and telephonic mechanisms. Typical uses include television studios, radio stations, cable television studios, telecommunication service centers, telegraph service offices, and film and sound recording facilities. Excluded from this use type are facilities classified as a "Telecommunications tower" or "Telecommunications facility."
Community food operation: A facility where prepared food is distributed, at no charge or for less than fair market value, for immediate consumption or where on-premises consumption of the food occurs. A "community food operation" is not a "Restaurant" as elsewhere defined and used in this appendix.
Community garden: The active cultivation of fruits, flowers, vegetables, or ornamental plants by more than one person or family. For purposes of this appendix, this use does not include "Retail sales."
Community market: From a permanent, fixed location, the offering for retail sale of fresh produce, prepared food items, other agricultural items, or handmade crafts directly to the consumer from stalls or tables which are not enclosed in a building, where the vendors are generally individuals who have raised the vegetables or produce or have made the crafts or have taken the same on consignment for retail sale.
Community recreation: A private recreational facility for use solely by the residents and guests of a particular residential development or residential neighborhood, including indoor and outdoor facilities. These facilities are usually proposed or planned in association with development, are owned or operated by a homeowners' association, condominium association, or similar entity, and are located within or adjacent to such residential development.
Conditional use: A special use, that is a use not permitted in a particular district except by a conditional use permit granted under the provisions of this appendix.
Conditional zoning: As part of classifying land within a locality into areas and districts by legislative action, the allowing of reasonable conditions governing the use of such property, such conditions being in addition to the regulations provided for a particular zoning district or zone by the overall zoning ordinance.
Construction sales and services: An establishment primarily engaged in retail or wholesale sales, from the premises, of materials which are generally essential to the construction of buildings or other structures, but specifically excluding automobile or equipment supplies, "Contractor shop, general or special trade," or any use which is otherwise specifically listed in the use tables in article 4 of this appendix. Typical uses include building material stores and home supply establishments.
Construction yard: An establishment housing the facilities of a business primarily engaged in construction activities, including the outside storage of materials, equipment, or supplies. Typical uses are building contractor's yards.
Consumer repair service establishment: An establishment primarily engaged in repair or maintenance services to individuals and households, rather than businesses, but excluding motor vehicle and equipment repair use types and "Personal services." Typical uses include appliance, computer, television, or clock repair shops, bicycle repair, watch or jewelry repair shops, locksmiths, or repair of musical instruments.
Contractor/subcontractor: Any business or person who agrees to furnish materials or perform services at a specified price, pertaining to the construction or maintenance of buildings or lands, including general building contractors engaged in the construction of residential or commercial structures; special trade contractors who assist in building construction or remodeling, such as carpentry, electrical, masonry, painting, metalworking, cabinetmaking, flooring installation, duct work, plumbing, heating, air conditioning, and roofing; landscape contractors engaged in the decorative and functional alteration, planting, or maintenance of grounds; furniture refinishing or upholstery (excluding auto upholstery), sign making, or similar work.
Contractor or tradesman shop, general or special trade: An establishment where a contractor/subcontractor, as defined above, maintains its principal office or a permanent business office, where the establishment may engage in the retail sale of goods manufactured, assembled, or serviced on the premises, and where such establishment engages in one or both of the following:
(1)
The fabrication, assembly, servicing, or storage of products or materials on site within a wholly enclosed building; or
(2)
Where permitted by this appendix, the outdoor storage of construction equipment and other materials customarily used in the trade carried on by the contractor but not including any construction or demolition debris or waste materials.
This use type does not include "Contractor shop, heavy construction" as defined below.
Contractor shop, heavy construction: An establishment where a heavy construction contractor engaged in activities such as paving, highway construction, utility construction, or similar work, maintains its principal office or a permanent business office, and where such establishment engages in one or all of the following:
(1)
The storage of products or materials on site within a wholly enclosed building;
(2)
The outdoor storage of construction equipment or other commercial motor vehicles on the site; or
(3)
Where permitted by this appendix, the outdoor storage of materials customarily used in the trade carried on by the contractor but not including any construction or demolition debris or waste materials.
Cultural services: A library, museum, or similar public or quasi-public establishment displaying, preserving and exhibiting objects of community and cultural interest in one or more of the arts or sciences. Such facility does not include the regular sale of the literary, musical, artistic, or reference materials or objects collected.
Day care center, adult: A regularly operating, structured service arrangement for the provision of supervised, communal setting and supplementary care and protection to four or more aged, infirm, or disabled adults who reside elsewhere, during only a part of a 24-hour day. Such center shall not include any overnight stays or overnight sleeping facilities. Services may include aid in personal hygiene, eating and drinking, ambulation, or recreation. This term does not include the home or residence of an individual who cares only for persons related to such resident by blood or marriage, a "day care home, adult," or any facility, or portion thereof, that is licensed by the state board of health or the state department of behavioral health and developmental services.
Day care center, child: A child day program offered to two or more children under the age of 13 in a facility that is not the residence of the provider or of any of the children in care, or to 13 or more children under the age of 13 at any location. A "child day program" means a regularly operating service arrangement for children where, during the absence of a parent or guardian, a person or organization has agreed to assume responsibility for the supervision, protection, and well-being of a child under the age of 13 for less than a 24-hour period. The term "Day care center, child" includes nursery schools, preschools, daytime care, after-school care, and similar uses but excludes public and private schools or any facility offering care to individuals for a full 24-hour period.
Day care home, adult: Adult day care services offered in the residence of the provider, serving one through five adults at any one time, exclusive of any adult related to the provider by blood, marriage, or adoption, when at least one adult receives care for compensation. Adult day care services means a regularly operating service arrangement for older adults or adults with disabilities where the supplemental care, protection, and well-being of the adults is for less than a 24-hour period.
Day care home, child, small: A child day program offered in the residence of the provider, serving one through five children at any one time, exclusive of any children related to the provider by blood, marriage, or adoption and any children who reside in the home, when at least one child receives care for compensation. No "Day care home, child, small," shall care for more than four children under the age of two, including the provider's own children and any children who reside in the home, unless the child day care home is licensed or voluntarily registered, except that a child day care home where the children in care are all grandchildren of the provider shall not be required to be licensed. A "child day program" means a regularly operating service arrangement for children where, during the absence of a parent or guardian, a person has agreed to assume responsibility for the supervision, protection, and well-being of children under the age of 13 for less than a 24-hour period.
Day care home, child, large: A licensed child day program offered in the residence of the provider for compensation, serving six through 12 children at any one time, exclusive of any children related to the provider by blood, marriage, or adoption and any children who reside in the home. Any "Day care home, child, large," shall be required to be licensed; however, where the children in care are all grandchildren of the provider, licensing is not required. A "child day program" means a regularly operating service arrangement for children where, during the absence of a parent or guardian, a person has agreed to assume responsibility for the supervision, protection, and well-being of children under the age of 13 for less than a 24-hour period.
Density: A measure of dwelling units or bedrooms per square feet for each lot.
Drive-through facility: A non-residential use which provides a service or product directly to a customer who drives a motor vehicle onto the premises and to a window or mechanical device through or by which the customer completes a service transaction or purchases a product without exiting the motor vehicle. This use does not include the selling of fuel at a service station or retail fuel pumps or the functions of a car wash, but does include the drive-up services and windows of uses such as banks, restaurants, pharmacies, dry cleaners, and similar establishments.
Driveway: A private way which establishes a connection for vehicles between an off-street parking space or loading space and a street, or for the movement of motor vehicles from one lot to another.
Dumpster: A large metal bin for refuse designed to be hoisted onto a specially equipped truck for emptying or hauling away.
Dwelling: A building, or portion of a building, designed to be used for continuous, year-round residential purposes, and containing one or more independent housekeeping units.
Dwelling, manufactured home: A structure subject to federal regulation, which is transportable in one or more sections; is eight body feet or more in width and 40 body feet or more in length in the traveling mode, or is 320 or more square feet when erected on site; is built on a permanent chassis; is designed to be used as a single-family dwelling, with or without a permanent foundation, when connected to the required utilities; and includes the plumbing, heating, air-conditioning, and electrical systems contained in the structure.
Dwelling, multifamily: A building, or portion thereof, designed for the continuous, year-round residential occupancy of three or more families, regardless of the method of ownership, with the number of families in residence not exceeding the number of dwelling units provided.
Dwelling, single-family, detached: A site built, modular, or industrialized building designed exclusively as one dwelling unit for occupancy by one family only, which is located on its own individual lot, and which is not attached to any other dwelling by any means.
Dwelling, townhouse: A one-family dwelling unit, with its own independent entrance at ground level and its own independent rear access to the outside, which is part of a building consisting of three or more one-family dwelling units, attached horizontally in a linear arrangement and separated by common, un-penetrated vertical walls extending from ground to roof. This use is sometimes called a rowhouse.
Dwelling, two-family: A building on an individual lot containing two dwelling units, designed for occupancy by not more than two families. This use is commonly referred to as a duplex.
Dwelling unit: A room or group of connected rooms occupied or capable of being occupied as an independent and separate housekeeping establishment by only one family, and which contains independent living, sleeping, cooking, eating, and sanitation facilities. A "dwelling unit" does not include a tent, seasonal quarters, travel trailer, or room in a "Hotel/motel," "Boarding house," or "Tourist home."
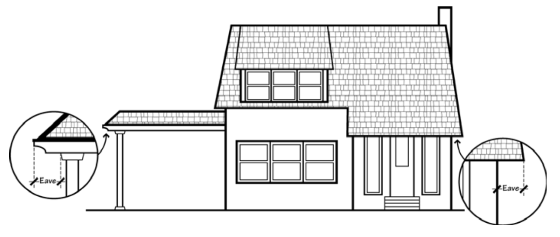
Eave: The projecting overhang at the lower edge of a roof and extending from a primary wall or support. (See Figure 11-3.)
Figure 11-3. Eave
Educational facilities, college/university: An institution providing full-time or part-time education beyond the high school level and authorized by the Commonwealth of Virginia to award associate, bachelor, master, or doctoral degrees. This use type may include academic buildings, administrative facilities, dormitories for students, special housing for faculty, parking areas, dining halls, and other physical features associated with the college or university use. Examples include universities, liberal arts colleges, community colleges, nursing and medical schools not accessory to a hospital, and seminaries.
Educational facilities, primary/secondary: A public, private, or parochial school offering instruction at the elementary, junior or senior high school level in the branches of learning and study required to be taught in the public schools of the Commonwealth of Virginia. Examples include public and private daytime schools, boarding schools, and military academies. This use type does not include preschools, "Business or nonindustrial trade school," or "Industrial trade school."
Elderly: Persons of 55 years of age and older.
Entertainment establishment: An eating and drinking establishment where entertainment is provided, including magicians, comedians, dancers, stage performances or music performances by more than one instrument or amplified music, or an establishment in which more than ten percent of the total floor area is designed or used as a dance floor, or where an admission fee is directly collected, or some other form of compensation is obtained, for dancing. This use type includes lounges, discos, nightclubs, dance halls, music or dance clubs, and similar facilities. Excluded from this use type are "Sports and recreation, indoor, commercial," "Amusement, indoor, commercial," and any uses which are otherwise specifically listed in the use tables in article 4 of this appendix.
Equipment sales/rental: An establishment primarily engaged in the display, sale, lease, or rental of vehicles or other apparatus commonly used in commercial, industrial, agricultural, or construction enterprises, including tools, trucks, tractors, trailers, bulldozers, backhoes, rollers, lifts, loaders, and similar construction equipment, agricultural implements, and industrial equipment or machinery. Included in this use type is the incidental maintenance and servicing of such equipment.
Establishment: Any entity or individual conducting a business, profession, or trade; and any entity or individual conducting a civic, community service, or nonprofit activity.
Family: The term "family" shall be defined as follows:
(1)
One or more persons related by blood, marriage, or adoption, or under approved foster care, occupying a single dwelling unit and living and cooking together as a single housekeeping unit; or
(2)
Up to and including three persons unrelated by blood, marriage, or adoption, or under approved foster care, occupying a single dwelling unit and living and cooking together as a single housekeeping unit; or
(3)
Up to and including eight persons with mental illness, intellectual disability, or developmental disabilities who reside with one or more resident counselors or other staff persons in a residential facility for which the department of behavioral health and developmental services is the licensing authority pursuant to the Code of Virginia, as amended; for purposes of this definition, mental illness and development disability shall not include current illegal use of or addiction to a controlled substance as defined in Code of Virginia, § 54.1-3401, as amended; or
(4)
Up to and including eight aged, infirm, or disabled persons who reside with one or more resident counselors or other staff persons in a residential facility for which the department of social services is the licensing authority pursuant to the Code of Virginia, as amended.
Financial institution: The provision of financial and banking services to consumers or clients. In addition to walk-in services for customers on site, such use may also include their support services such as call centers, training centers, and offices. Typical uses include banks, savings and loan associations, credit unions, lending establishments, and mortgage offices.
Flea market: A market established at a permanent, fixed location, in an open area or within a structure where goods are offered for sale to the general public by independent vendors from open, semi-open, or temporary stalls, tables, or other spaces and where there are ordinarily no long-term leases between sellers and operators.
Floodplain: For the definition of floodplain and terms associated with floodplain, see section 5-20 of this appendix.
Floor area, gross: The sum of the horizontal areas (floors) of the several stories of a building or buildings, measured from the exterior surfaces of the exterior walls, or in the case of a common wall separating two buildings, from the centerline of such common wall. Gross floor area shall include the total floor area of all buildings situated on a lot. Gross floor area shall include exterior balconies, mezzanines, porches, and attached carports. Gross floor area shall not include interior parking and loading spaces or air spaces above atriums.
Floor area, net: The gross floor area of a building excluding hallways, stairwells, utility rooms, and other areas not meant for habitation or public service. For the purpose of this appendix, net floor area shall equal 75 percent of the gross floor area.
Fueling station: Any lot, or portion thereof, with fuel pumps and underground storage tanks for the wholesale sales of motor vehicle fuels or oils, generally by contract, or for the fueling of motor vehicles directly associated with a commercial establishment. A fueling station is a stand-alone use which does not include a "Gasoline station" or fuel pump areas on the site of a commercial or industrial establishment for purposes of servicing its own fleet of motor vehicles.
Funeral home: An establishment engaged in undertaking services for the deceased, including preparing the dead for burial and arranging and managing funerals. A funeral home, for purposes of this appendix, includes a funeral chapel and may include a crematorium as an accessory use.
Gaming establishment: The operation or conducting of any games of chance for the return of money, cash, or prizes, or anything that could be redeemed for money, cash, or prizes. "Gaming establishments" include bingo halls, off-track betting parlors, and the operation of games of chance played with cards or mechanical or electro-mechanical devices. This definition does not apply to the Virginia Lottery or games of chance operated by charitable organizations licensed under the Commonwealth of Virginia.
Garage: A building, accessory to a permitted principal residential structure, providing for the storage of one to three motor vehicles owned, leased, or used by the occupants of the dwelling to which it is accessory, and in which no business, occupation, or service for profit is conducted.
Garden center: An establishment primarily engaged in retail or wholesale (bulk) sale, from the premises, of trees, shrubs, seeds, fertilizers, pesticides, plants and plant materials primarily for agricultural, residential, and commercial consumers. Such establishments typically sell products purchased from others, but may sell some material which they grow themselves. The exterior display of inventory for sale shall not be considered "outdoor storage" for purposes of this appendix. Typical uses include nurseries, plant stores, and lawn and garden centers.
Gasoline station: Any establishment, or portion thereof, with fuel pumps and underground storage tanks for retail sale to the public of motor vehicle fuels or oils, which establishment may include the sale of propane or kerosene as accessory uses.
Glare: The effect produced by brightness directly from a light source sufficient to cause annoyance, discomfort, or loss in visual performance and visibility. Glare may result from insufficiently shielded or inappropriately aimed light sources in the field of view.
Government administrative services: Governmental offices providing administrative, clerical, or public contact services that deal directly with the citizen. Typical uses include administrative offices of the federal, state, county, and town, courthouses, and postal services directly available to the consumer operated by the United States Postal Service. Excluded from this use type are "Public safety services," "Public maintenance and service facility," and any use which is otherwise specifically listed in the use tables in article 4 of this appendix.
Group care facility: A residential facility or dwelling unit housing persons unrelated by blood, marriage, adoption, or guardianship, including congregate homes, group care homes, halfway houses, nursing homes, and transitional living shelters as defined below. Excluded from "group care facility" is any group of persons which constitutes a "family" as defined in this appendix.
(1)
Congregate home: A group care facility providing accommodation and supervision to individuals or families where medical care is not a major element and including homes for orphans, foster children, veterans, victims of domestic violence including battered men, women or children, the elderly, pregnant teenagers, nonresident families of hospitalized patients, mentally handicapped, or similar uses.
(2)
Group care home: A group care facility in which more than eight individuals with mental illness, intellectual disability, or developmental disabled persons reside, with one or more resident counselors or other staff persons.
(3)
Halfway house: A group care facility providing accommodation, rehabilitation counseling, and 24-hour a day on-site supervision to persons suffering from alcohol or drug addiction, or persons suffering from similar disorders, or persons re-entering society after being released from a correctional facility or other institution.
(4)
Nursing home: A group care facility providing long term accommodation to the elderly, mentally or physically handicapped, or other individuals incapacitated in some manner for medical reasons and where primary or non-primary medical treatment facilities are a component of the use. Excluded from this use type are facilities providing surgical or emergency medical services and facilities providing care for alcoholism, drug addiction, mental disease, or communicable disease.
(5)
Transitional living shelter: A group care facility providing shelter to the homeless and generally integrated with other social services and counseling programs to assist in the transition to self-sufficiency through the acquisition of a stable income and permanent housing.
Gun-firing range: The use of a structure or land for the discharging of firearms for the purposes of target practice or temporary competitions, with such use conducted entirely within a building, within a partially enclosed structure, or in the open.
Guarantee: A performance bond, letter of credit, or other form of surety acceptable to the town attorney and the town manager, which is held or provided as security for the execution, completion, or existence of a requirement of this appendix or a condition imposed with the granting of a variance or conditional use permit.
Guest room: A room used, intended to be used, arranged, or designed to be used by one or more guests for sleeping purposes, in which no provision is made for cooking, and for which compensation is paid.
Health official: The director of the town's department of health or an authorized agent or designee thereof.
Height of structure: Height of structure shall be defined and measured as follows:
(1)
Building or roofed structure, height: The vertical distance measured from the average ground level on all sides of the structure to the level of the highest point of the roof or top of a structure having a flat roof, or the mean level between the eaves and the highest point of the roof of a structure having a pitched roof. (See Figure 11-4.) This distance is calculated by measuring separately the average height of each building wall, then averaging them together. (See Figure 11-5.)
Figure 11-4. Measuring Heights—Roof Types
Figure 11-5. Building Height Using Average Ground Level
(2)
Fence or wall, height: The vertical distance from the average level of the ground adjacent to the fence or the wall to the top of the highest projection.
(3)
Retaining wall, height: The vertical distance from ground level on the highest side of the retaining wall. (See Figure 11-6.)
Figure 11-6. Measuring Heights—Retaining Wall
(4)
Satellite dish antenna, height: The vertical distance from the ground level at the bottom of the base which supports the antenna to the highest point of the dish antenna when positioned for operation (see Figure 11-7)
Figure 11-7. Measuring Heights—Satellite Dish Antenna
Home occupation: An activity conducted for gain as an accessory use within a dwelling unit or within an accessory structure located on the same lot as the dwelling unit, and conducted by the resident thereof, and where the use is limited in extent and incidental and secondary to the use of the dwelling unit for residential purposes and does not change the character of the dwelling unit or the lot on which the dwelling unit is located.
Hospital: An institution, licensed by the state department of health, providing primary health services and medical, psychiatric, or surgical care for sick or injured persons, primarily on an in-patient basis, and including as an integral part of the institution, ancillary facilities for outpatient and emergency treatment, diagnostic services, training, research, administration, and services to patients, employees, or visitors. This use type excludes any use which is otherwise specifically listed in the use tables in article 4 of this appendix.
Hotel/motel: A building or group of attached or detached buildings in which lodging units are habitually offered to the public, for compensation, on an overnight or weekly basis, and in which ingress and egress to and from all rooms are made through an inside lobby or office supervised by a person in charge at all hours. As such, it is open to the public in contradistinction to a "Boarding house" or "Group care facility" as defined in this appendix. A hotel or motel is designed, used, or intended for the accommodation of travelers on a temporary basis. A hotel/motel includes furnished rooms, a lobby, clerk's desk or counter, facilities for registration, and daily linen and housekeeping services. Such use may also include "Restaurants," meeting rooms, and recreational facilities.
Impervious surface: Any man-made surface or material that does not readily absorb water or that substantially reduces or prevents the infiltration of storm water. For purposes of this appendix, impervious surfaces shall include, without limitation, roofs, decks, sidewalks, outdoor storage areas, and parking and other areas paved with asphalt, concrete, compacted sand, compacted gravel, or clay.
Improved street or improved alley: A street or alley that has a paved surface.
Industrialized building: A combination of one or more sections or modules, subject to state regulations and including the necessary electrical, plumbing, heating, ventilating and other service systems, manufactured off-site and transported to the point of use for installation or erection, with or without other specified components, to comprise a finished building. Manufactured homes defined in Code of Virginia, § 36-85.3, as amended, and certified under the provisions of the National Manufactured Housing Construction and Safety Standards Act shall not be considered industrialized buildings for the purpose of this definition and appendix.
Industrial trade school: A specialized instructional establishment for teaching industrial trade skills in which machinery or industrial vehicles, including heavy trucks, is employed as a means of instruction. This use type shall not be deemed to include "Educational facilities, primary/secondary," "Educational facilities, college/university," "Home occupation," or incidental instruction services provided in conjunction with another principal use.
Kennel: The keeping, raising, breeding, training, showing, selling, or boarding of dogs or cats. Such activity shall not be considered a kennel where accessory to a principal residential use, provided that not more than a total of five dogs and cats exceeding four months of age are kept, of which total no more than three are dogs. References within this appendix to "outdoor pens or runs" shall mean any outdoor areas and facilities in which animals are exercised, boarded, groomed or otherwise kept or cared for.
Laboratory: An establishment primarily engaged in performing scientific or industrial research or testing activities in technological fields or an establishment primarily engaged in analytical or diagnostic services to medical doctors or dentists. Typical uses include the provision of bacteriological, biological, x-ray, pathological, or similar analytical or diagnostic services to medical doctors or dentists; the production, fitting, or sale of optical or prosthetic appliances; and biotechnology laboratories, engineering laboratories, environmental laboratories for the analysis of air, water, and soil, and pharmaceutical laboratories only involved in research and development. Excluded from this use type are any laboratories which mass produce one or more products directly for the consumer market
Landscaping: An area consisting of planting materials including, but not limited to, trees, shrubs, ground covers, grass, flowers, landscaping gravel, decorative rock, bark, mulch, and other similar materials.
Laundromat: A facility where patrons, for a fee, wash, dry, or dry clean clothing or other fabrics in machines operated by the patron. A "laundromat" is classified as "Personal services."
Laundry: An establishment primarily engaged in the provision of laundering, cleaning, or dyeing services other than those classified as "Personal services." Typical uses include bulk laundry and cleaning plants, diaper services, linen supply services, and carpet cleaning plants.
Live-work unit: A structure or portion of a structure combining a residential living space with an integrated workspace principally used by the resident.
Loading space. Space for bulk pickups and deliveries, scaled to delivery vehicles expected to be used and accessible to such vehicles when required parking spaces are filled.
Lot or zoning lot: For purposes of this appendix, a lot or zoning lot is a clearly defined parcel of land established by plat, subdivision, or as otherwise permitted by law, fronting on a public street, and having sufficient area and dimensions to meet minimum zoning district requirements for area, frontage, use, and coverage, and to provide such yards and other open space as required by the respective zoning district regulations. In this appendix, the terms "lot" and "zoning lot" have the same meaning and may be used interchangeably. A lot may consist of combinations of contiguous lots of record or portions of lots so recorded, provided that in no case of subdivision or combination shall any residual lot, portion of lot, or parcel be created which does not meet the requirements of this appendix. Lots include "corner lots," "interior lots," and "through lots."
Lot, corner: A lot located at the intersection of two or more streets. (See Figure 11-8.)
Lot, interior: A lot with only one frontage on a street. (See Figure 11-8.)
Lot, through: A lot which has frontages on two nonintersecting streets. Through lots may be referred to as double frontage lots. (See Figure 11-8.)
Figure 11-8. Lot Types and Frontage
Lot of record: A lot which existence, location, and dimensions have been legally recorded or registered in a deed or on a plat in the clerk's office of the circuit court.
Lot area: The total square footage or acreage of land within the front, rear, and side lot lines of a lot.
Lot area, minimum: The smallest lot on which a particular use or structure may be located in a particular district.
Lot area per dwelling unit: That amount of lot area required, by the applicable provisions of this appendix, for each dwelling unit located on a lot.
Lot coverage: That portion of a lot, which when viewed from directly above, would be covered by any building or structure, parking and loading areas and other surface which is impermeable or substantially impervious to storm water. Gravel parking areas shall be considered impervious. For the purposes of this definition, lot shall include contiguous lots of the same ownership within a single zoning district which are to be used, developed, or built upon as a unit.
Lot front: The side of a lot which abuts a public street. For corner lots, the shortest side fronting upon a street shall be considered the lot front.
Lot frontage: The horizontal linear dimension between the side lot lines measured from the points where the side lot lines intersect a street right-of-way. (See Figure 11-8.) All sides of a lot that abut a street shall be considered frontage. On curvilinear streets, the arc between the side lot lines shall be considered the lot frontage.
Lot line: The lines bounding a lot.
Lot line, front: In the case of an interior lot abutting upon only one street, the line which separates the lot from such street. (See Figure 11-9.) In the case of a corner lot, the line separating such lot from the street upon which the lot has the least dimension shall be considered the front lot line. (See Figure 11-10.)
Lot line, rear: That lot line which is parallel to and most distant from the front lot line of the lot; provided, however, that in the case of an irregular or triangular lot which has no lot line which is approximately parallel to the front lot line, a line ten feet in length entirely within the lot, parallel to, and at the maximum possible distance from the front lot line shall be considered to be the rear lot line. (See Figures 11-9, 11-10 and 11-11.)
Lot line, side: Any lot line other than a front or rear lot line. (See Figures 11-9 and 11-10.)
Figure 11-9. Lot Lines—Interior Lot
Figure 11-10. Lot Lines—Corner Lot
Figure 11-11. Rear Lot Line—Irregular or Triangular Lot
Lot width: The horizontal distance between side lot lines measured parallel to the abutting street right-of-way at the required building setback line. (See Figure 11-12.)
Figure 11-12. Lot Width
Manufactured home: See "Dwelling, manufactured home."
Manufacturing: The processing or converting of natural, raw, secondary, partially completed materials, or finished materials or products, or any of these, into an article or substance of different character, or for use for a different purpose. Manufacturing includes processing, compounding, assembly, packaging, treatment, or fabrication, of goods. Products may be finished or semi-finished and are generally made for the wholesale market, for transfer to other plants, or to order for firms or consumers. Accessory uses may include offices, cafeterias, warehouses, storage yards, repair facilities, and truck fleets.
Manufacturing: Stone and cut stone products. A manufacturing establishment primarily engaged in cutting, shaping, and finishing marble, granite, slate, and other stone for building and miscellaneous uses. This use type also includes monument and stone works engaged in the manufacturing of headstones, footstones, markers, statues, obelisks, cornerstones, and ledges for placement on graves.
Manufacturing: Structural clay products. A manufacturing establishment primarily producing structural clay products, including brick, pipe, china plumbing fixtures, and vitreous china articles, fine earthenware and porcelain electrical supplies and parts.
Manufacturing: Wood products: A facility where logs or partially processed cants are sawn, split, shaved, stripped, chipped, or otherwise processed to produce wood products. This manufacturing and processing use type includes lumber mills, sawmills, planning mills, lath mills, and plywood and veneer mills engaged in producing lumber and basic wood products, together with the wholesale and retail sale of such products and establishments engaged in manufacturing finished articles made entirely or mainly of wood or wood substitutes. Also included in this use type are truss and structural beam assembly; wood containers, pallets and skids; wood preserving; particle board assembly; and turning and shaping wood and wood products on a manufacturing basis.
Mechanical or electrical equipment: Heating, ventilating, air conditioning, or power generation equipment.
Medical office. See "Office, medical."
Meeting hall: See "Assembly hall."
Mini-warehouse: An enclosed storage facility providing independent, individual, fully enclosed storage space, in a controlled access, for lease to individuals for long-term storage of their household goods or personal property, where each storage area is enclosed by walls and ceiling and has a separate entrance for storing or removing stored goods. Packaging stores and the rental of trucks, trailers, or equipment is not deemed to be customarily accessory to a mini-warehouse.
Mixed use building: A single building containing more than one type of land use permitted within a zoning district, including residential, commercial, and office, or a mix of residential.
Modular building: Building comprised of one or more sections that are intended to become real property, primarily constructed at a location other than the permanent site, built to comply with the Virginia Industrialized Building Safety Law (Code of Virginia, § 36-70 et seq., as amended) as regulated by the Virginia Department of Housing and Community Development, and shipped with most permanent components in place to the building site for final assembly on a permanent foundation. For purposes of this appendix, a modular building shall not include any manufactured building subject to and certified under the provisions of the National Manufactured Housing Construction and Safety Standards Act of 1974 (42 U.S.C. § 5401 et seq.).
Monument sales, retail: An establishment primarily engaged in the retail sale of monuments, such as headstones, footstones, markers, statues, obelisks, cornerstones, and ledges, for placement on graves.
Motor vehicle: Any vehicle which is self-propelled or designed for self-propulsion. Any device designed, used, or maintained primarily to be loaded on or affixed to a motor vehicle to provide a mobile dwelling, a sleeping place, storage, or office or commercial space shall be considered a part of a motor vehicle.
Motor vehicle rental/leasing: An establishment engaged exclusively in the rental of automobiles, sport utility vehicles, light trucks, vans, or motorcycles, including incidental parking and servicing of vehicles for rent or lease. Typical uses include automobile rental agencies and taxicab dispatch areas. Excluded from this use type are "Motor vehicle rental, self-moving" and "Equipment sales/rental."
Motor vehicle rental, self-moving: An establishment engaged exclusively in the rental of trucks, vans, and trailers for moving household personal property, and which establishment may engage in the rental of other moving accessories, such as trailer hitches and mounts, padded blankets, and dollies, and the sale of boxes and other packing materials. Motor vehicle rental is limited to those vehicles normally associated with the self-moving of household personal property, such as light-duty vans, trucks generally ranging in size from ten feet to 26 feet, cargo trailers generally ranging in size from four feet by eight feet to six feet by 12 feet, utility trailers generally ranging in size from four feet by seven feet to six feet by 12 feet, and auto trailers. This use type does not include "Motor vehicle rental/leasing," "Mini-warehouse," or any use which is otherwise specifically listed in the use tables in article 4 of this appendix.
Motor vehicle repair services, major: The general repair, rebuilding, or reconditioning of engines, suspensions, brake systems, motor vehicles, or trailers, including body work, welding and major painting service, or the repair of construction equipment, commercial trucks, agricultural implements and similar heavy equipment. Typical uses include automobile and truck repair garages, transmission shops, radiator shops, body and fender shops, equipment service centers, machine shops, welding shops, and other similar uses where major repair activities are conducted. For purposes of this definition, "body work" is the repair, replacement, straightening, or restoration of the body or frame of a motor vehicle, including collision repairs.
Motor vehicle repair services, minor: The replacement or repair of any motor vehicle part that does not require the removal of the engine head or pan, engine transmission, or differential and suspension parts, but may include incidental body and fender work, minor painting, and upholstering service. Such use may include the incidental towing of vehicles to the lot expressly for the purposes of scheduled repair by the motor vehicle repair services establishment. This use type does not include the storage of wrecked or abandoned vehicles. Typical uses include oil and lubrication services, tire sales and installation, replacement of batteries and similar repair and services activities where minor repairs and routine maintenance are conducted, motor vehicle upholstery repair or replacement, and motor vehicle radio or stereo system installation or service. For purposes of this appendix, "Motor vehicle repair services, minor" does not include "Car wash," "Equipment sales/rental," "Motor vehicle repair services, major," or any use otherwise specifically listed in the use tables in article 4 of this appendix.
Multifamily dwelling: See "Dwelling, multifamily."
Non-conforming lot: A lawful lot of record existing on the effective date of the zoning regulations applicable to the district in which the lot is located, that does not comply with the minimum applicable size or other lot requirements of that district.
Non-conforming structure: A lawful structure existing on the effective date of the zoning regulations applicable to the district in which the structure is located, that does not comply with the minimum applicable bulk, height, setback, floor area or other dimensional requirements applicable to structures within that zoning district.
Non-conforming use: A lawful principal use of a lot, existing on the effective date of the zoning regulations applicable to the district in which the use is located, or a more restricted use, that does not comply with applicable use regulations of that district.
Office, general:
(1)
An establishment primarily engaged in providing administrative, clerical, and other services not involving the manufacture, assembly, storage, display, or direct retail sale of goods, and not including medical services or "Government administrative services." Typical uses include real estate, insurance, management, tax preparation, call centers, data processing, computer software development, travel or other business offices, and organization and association offices; or
(2)
An establishment primarily engaged in the conduct of professional business by professional persons as defined herein but not including medical services. For purposes of this definition, a professional person is a person who practices an occupation in which some department of science or learning is applied to affairs of others, either advising or guiding them, or otherwise serving their interests or welfare in the practice of an art founded on such knowledge. The word professional implies attainments in knowledge as distinguished from mere skill and the application of such knowledge to serve others. Professional person may include an attorney, accountant, professional engineer, architect, surveyor, financial planner, landscape architect, or planner, but shall not include medical- or healthcare-related practitioners licensed by the Commonwealth of Virginia.
For purposes of this appendix, contractors who perform services off-site are included in this use type if equipment and materials are not stored at the site and fabrication or similar work is not carried on at the site.
Office, medical: An establishment in which doctors, dentists, or similar practitioners licensed by the Commonwealth of Virginia provide health care services to clients, including medical or health-related physical or massage therapy, counseling, diagnoses, treatment, and minor surgical care on a routine basis and exclusively on an outpatient basis. Emergency treatment is not the dominant type of care provided at this facility. Excluded from this use type are "Clinics," "Outpatient mental health and substance abuse clinics," "Hospital," and any use which is otherwise specifically listed in the use tables in article 4 of this appendix.
Off-site: Outside the limits of the areas encompassed by the lot or parcel of record on which the activity is conducted.
On-site: Within the limits of the area encompassed by the lot or parcel of record on which the activity is conducted.
Off-street parking: Space provided for the parking of motor vehicles outside the street right-of-way.
Open space, usable: Open space within or directly related to a multifamily or townhouse residential development or a group care facility which is designed and intended for the common use and enjoyment of the residents of the development or facility, or employees of such development or facility. Such common open space is land not covered by parking, driveways, buildings, or storm water management facilities, except that it may contain and include structures of a recreational nature (such as picnic shelters, gazebos, swimming pools, tennis courts, basketball courts, and similar facilities). "Usable open space" shall consist of open areas of such a size that the smallest dimension is not less than 15 feet and is of such configuration to allow for the conduct of outdoor activities. Yards required by this appendix, which meet the foregoing dimensions, may be included in the allocation and calculation of usable open space. Other open or landscaped areas with a dimension of less than 15 feet in any direction shall not be credited to the usable open space requirement for the development.
Outdoor storage: The keeping or storing, other than in a wholly enclosed building, of any goods, items, materials, equipment, personal property, or merchandise. "Outdoor storage" shall be permitted only as an accessory use where specifically allowed by this appendix. The term "outdoor storage" shall generally be considered to be anything that is not normally found in residential yards and on porches, or around business premises, and may include, without limitation, construction materials, motor vehicle parts, appliances, unused indoor-type furniture, and the clutter of various personal items or stacks of containers in plain view. In residential zoning districts, construction and landscaping materials currently being used on the premises within a period of one year, neatly stacked firewood in the rear or side yard for the purpose of consumption only by the person(s) residing on the premises, equipment regularly used for lawn maintenance, outdoor furniture, children's toys, and bicycles shall generally not be considered outdoor storage; however, an excess of those items, or equipment in disrepair, shall be considered outdoor storage. For purposes of this definition, motor vehicle inventory for sale or lease, motor vehicle rental inventory, motor vehicle and commercial motor vehicle fleets associated with a business establishment, and the sale inventory of a nursery or commercial greenhouse shall not be considered "outdoor storage."
Outpatient mental health and substance abuse clinic: An establishment which provides outpatient services primarily related to the treatment of mental health disorders, alcohol, or other drug or substance abuse disorders, which services include the dispensing and administering of controlled substances and pharmaceutical products by professional medical practitioners as licensed by the Commonwealth of Virginia.
Overlay district: A zoning district established by this appendix to prescribe special regulations to be applied to a lot in combination with, and supplemental to, the underlying base district.
Paint ball facility: An establishment engaged in the provision of a field or facility designated for the use of pneumatic paintball guns for recreational use. A pneumatic paintball gun means a paintball gun that expels by action of pneumatic pressure plastic balls filled with paint for the purpose of marking the point of impact.
Parking area: An area provided for vehicular parking outside the dedicated street right-of-way, that provides one or more parking spaces together with drive aisles, ingress and egress lanes, and similar features.
Parking lot: A surface parking area for motor vehicles where there is no gross building area below the parking area and no gross building area or roof above it, and which provides one or more parking spaces together with driveways, aisles, turning and maneuvering areas, incorporated landscaped areas, and similar features meeting the requirements established by this appendix. For the purposes of this definition, a "parking lot" includes a "Parking lot facility" and a parking lot which is accessory to a permitted principal use
Parking lot facility: An off-street, surfaced, ground level area where motor vehicles are stored for hourly, daily, or overnight parking as the permitted principal use of the property. A "parking lot facility" does not include any on-site or off-site parking accessory to a permitted principal use.
Parking, off-site: Off-street parking which is located on a separate lot from the lot containing the use which the parking is intended to serve.
Parking space, off-street: A space on premises rather than on the street adequate in size for the parking of one motor vehicle with room for opening doors on both sides and having a permanent means of access to a street right-of-way. For purposes of this definition, motor vehicle inventory for sale or lease, motor vehicle rental inventory, or motor vehicle and commercial motor vehicle fleets associated with a business establishment shall not be considered an "off-street parking space."
Personal improvement services: Establishments primarily engaged in the training and development of a person through the provision of informational, instructional, personal improvements, and similar services. Typical uses include driving schools, wellness centers, reducing salons, dance or martial arts studios, art or music lessons, and handicraft and hobby instruction. This use type does not include "Personal services" or any use which is otherwise specifically listed in the use tables in article 4 of this appendix. For purposes of this definition, a "wellness center" is an establishment containing customized health services that may include fitness, personal training and nutrition consulting, incorporating an individualized nutritional and fitness program with specific goals, and where clients are generally under the supervision of licensed staff which include nutritionists and personal trainers.
Personal services: An establishment primarily engaged in the provision of frequently or recurrently needed individual services generally related to personal needs, such as the care of a person or a person's apparel. Typical uses include beauty or barber shops, nail salons, day spas, tanning salons, "laundromats," dry cleaning stations serving individuals and households, tailors or seamstresses, acupuncturists, "body piercing establishments," "tattoo parlors," shoe repair shops, and the like, but not including medical services, "Personal improvement services," or any use which is otherwise specifically listed in the use tables in article 4 of this appendix.
Pet grooming: An establishment where, for a fee, domesticated animals are bathed, clipped, or combed or brushed for the purpose of enhancing their aesthetic value or health, and where all such activity occurs wholly enclosed in a building. For purposes of this definition, "domesticated animals" shall include dogs and cats only.
Petition: The completed form(s), with all documents, exhibits, and fees required of a petitioner for an appeal to the town council or circuit court as provided for in this appendix.
Petitioner: The party filing a petition of appeal to the town council or circuit court as provided for in this appendix.
Planning commission: The planning commission of the Town of Clifton Forge, Virginia.
Portable storage container: A portable, weather-resistant receptacle designed and used for the storage or shipment of items, including, but not limited to, household goods, furniture, wares, building materials, equipment, or merchandise. The term shall not include dumpsters or refuse containers.
Printing/publishing facility: An establishment which engages in the professional printing and reproduction of publications, including newspapers, magazines or other periodicals, and books.
Principal structure: A structure in which the primary use of the lot on which the structure is located is conducted.
Principal use: The main use of land or structures as distinguished from a secondary or accessory use.
Public facilities: A use conducted by, or a facility or structure owned or managed by, the government of the United States, the Commonwealth of Virginia, Alleghany County, or the Town of Clifton Forge that provides a governmental function, activity, or service for public benefit.
Public maintenance and service facility: A public or public utility facility supporting maintenance, repair, motor vehicle or equipment servicing, material storage, and similar activities associated with the provision of public and utility services, including street or sewer storage yards, equipment service centers, and similar uses having characteristics of commercial services or contracting or industrial activities.
Public park or recreational area: Publicly owned and operated park, picnic area, playground, indoor/outdoor athletic or recreation facility, indoor/outdoor shelter, and other similar uses. This use type does not include "Public recreation assembly." For purposes of this definition, "park" is predominantly open space, used primarily for active or passive recreation, not used for a profit-making purpose, and generally relies on a natural or man-made resource base and is developed with few structures and a low intensity of impact on the land. Typical uses and activities include trail systems, trail fitness areas, picnic areas, fishing, indoor/outdoor shelters, open space, playgrounds equipped with swings, gym bars, basketball courts and similar equipment, and other similar uses.
Public recreation assembly: Publicly owned and operated community centers, athletic fields, and year-round swimming facilities. For purposes of this definition:
(1)
"Community center" is a place, structure, area, or other facility used as a place for meetings, recreation, or social activity, which is publicly owned and not operated for profit. Such facility is generally open to the public and designed to accommodate and serve significant segments of the community.
(2)
"Athletic field" is an outdoor site, often requiring equipment, designed for organized athletic competition in field sports such as softball, baseball, soccer, and football. Athletic fields may include bleachers, but do not provide locker rooms.
This use type does not include a "sports stadium, arena, or coliseum" which shall be defined as a large open or enclosed space specifically designed as a place of public assembly for viewing sporting events or other special entertainment events, including concerts, and where such field or court is partly or completely surrounded by tiers of seats for spectators.
Public safety services: Facilities for the conduct of public safety and emergency response services, often located in or near the area where the service is provided. Employees are regularly present on-site. Accessory uses include offices and parking. This use type includes fire stations, police stations, and emergency medical and ambulance stations.
Public water and sewer: A water or sewer system owned or operated by the Town of Clifton Forge or Alleghany County, or owned and operated by a private individual or a corporation approved by the town council and properly licensed by the state corporation commission.
Recreational vehicle: A vehicle towed or self-propelled on its own chassis, or attached to the chassis of another vehicle, and designed or used for temporary living accommodations for recreational, camping, travel, or seasonal use only. Recreational vehicles shall include, but not be limited to, travel trailers, truck campers, camping trailers, motor coach homes, tent trailers, converted trucks and buses, boats, boat trailers, and utility trailers or similar devices for temporary mobile housing.
Recreational vehicle sales and service: The display and retail sales of recreational vehicles as defined herein, including the sale, installation, and servicing of parts and related accessories.
Recycling drop-off station: An accessory use, structure, or movable container, designed and used for the depositing and temporary accumulation of the following:
(1)
Recyclable discarded materials, such as paper, cardboard, glass, metal, or plastic, which are subsequently transported to a recycling collection facility for further processing; or
(2)
Donated goods, such as clothing, furnishings, or other personal or household items, prior to delivery to a broker or user of such materials.
Such use, structure, or movable container is intended for household or consumer use and does not include use by commercial or industrial establishments or the permanent storage or processing of such items. This use type does not include "Recycling collection facility."
Recycling collection facility: A permanent facility designed and used for collecting, purchasing, storing, and re-distributing pre-sorted, recyclable materials that are not intended for disposal, such as paper, newspaper, or used food or beverage containers. A recycling collection facility shall be used for limited processing of recyclable materials, such as can and glass crushing and sorting. This use type does not include "Recycling drop-off station," "Wrecker yard," or a recycling and salvage operation which engages in the storage, sale, dismantling or other processing or compaction of scrap or discarded materials.
Religious assembly: Any structure principally used as an assembly place for regularly organized religious worship and related incidental activities. Typical uses include churches, synagogues, temples, mosques, and similar buildings, and including accessory uses customarily associated with the primary purpose, such as parish houses, religious education buildings, convents, columbaria, cemeteries located on the same lot, bookstores inside the church building, and child care on the premises during worship services. "Educational facilities, primary/secondary," "Day care center, adult," "Day care center, child," "Community food operation," and "Supply pantry" are not considered customary accessory uses for purposes of this definition.
Research and development: An establishment primarily engaged in research, or research and development, of innovative ideas in technology-intensive fields. Typical uses include the research and development of communication systems, transportation, geographic information systems, and multi-media and video technology. The development and construction of prototypes may be associated with this use type.
Resident security or manager apartment: A single dwelling unit located entirely within the structure of a principal permitted use where such dwelling unit is accessory and subordinate to the principal permitted use and which is designated for use only by the resident manager or resident security personnel of such principal permitted use. Such dwelling unit shall not be sold, leased, or rented for other purposes.
Resource conservation facility: Fish ponds; game preserves, botanical gardens; water reservoirs; or wildlife rescue shelter or refuge area. For purposes of this definition, a "wildlife rescue shelter or refuge area" is a facility or area maintained for the welfare, protection, and preservation of wildlife species.
Restaurant: An establishment primarily engaged in the preparation and sale of food and beverage to the customer in a ready-to-consume state for take-out, delivery, or table service. Such meals or other prepared foods are generally prepared on the premises and are regularly sold. A restaurant may include the licensed on-premises sale, service and consumption of beer, wine or other alcoholic beverages as an accessory use. Such establishment may provide entertainment for restaurant patrons, which entertainment is clearly incidental to the restaurant's primary function, such as the playing of the piano, other non-amplified music, or a dance floor not exceeding ten percent of the seating area of the establishment. A "drive-through facility" is not considered a customary accessory use for purposes of this definition. This use type includes, without limitation, cafeterias, brewpubs, coffee shops, cafes, sandwich shops, ice cream parlors, fast food restaurants at which patrons order and receive food orders at a counter or window for consumption on or off the premises, and full-service restaurants at which patrons are seated at tables or booths and where food orders are taken at and delivered to such tables or booths by wait staff. Excluded from this use type are "Entertainment establishments," "Bakeries," catering establishments, concession stands, and any use which is otherwise specifically listed in the use tables in article 4 of this appendix.
Retail sales, general: An establishment engaged in the sale or rental of commonly used goods and merchandise directly to the consumer for personal or household use, and including the incidental service of such merchandise. This use type includes:
(1)
Bicycle, florist, gift or novelty, antique, pawn, and pet shops;
(2)
Art supplies, camera and photographic supplies, clothing, convenience, grocery, computer and software, electronics, fabric, jewelry, music (recordings), musical instruments, paint or wallpaper, picture framing, photo finishing services and supplies, shoe, sporting goods, stationery, toy, hobby, and video stores;
(3)
Art galleries, bookstores, costume rental, news dealers or newsstands, optical retail sales, and pharmacies;
(4)
Department and other variety stores, and specialty shops offering for sale items related to a specific theme such as kitchen wares; and
(5)
Similar retail establishments.
Excluded from this use type are "Automotive parts/supply, retail," "Gasoline stations," "Automobile dealerships," "Equipment sales/rental," "Restaurant," "Bakery," manufactured home sales, fuel distribution, or any use which is otherwise specifically listed in the use tables in article 4 of this appendix. For purposes of this definition, "fuel distribution" means a retail trade establishment engaged, as a principal use, in the sale to consumers of fuel oil, butane, propane and liquefied petroleum gas (LPG), bottled or in bulk, for heating or cooking, including sales, installation of tanks, and delivery to households and businesses.
Retail sales, large furnishings: A retail sales establishment primarily characterized by large showrooms and floor samples, and where the retail sale is generally followed by delivery to the home, and which may include installation of the purchased item. Such establishments include stores primarily engaged in the retail sale of large appliances such as refrigerators, ovens, washers, and dryers; furniture stores; mattress stores; stores primarily engaged in the retail sale of household fixtures such as bathroom fixtures, carpeting or other floor coverings, or lighting; and the retail sale of swimming pools, hot tubs, or spas. This use type does not include any use which is otherwise specifically listed in the use tables in article 4 of this appendix.
Retaining wall: A wall or terraced combination of walls designed to retain or restrain lateral forces of soil, such soil being similar in height to the height of the wall, and where such retaining wall is of a height no greater than that necessary to serve such stated purpose and is not used to support, provide a foundation for, or provide a wall for a building or other structure.
Satellite dish antenna: An antenna in the shape of a shallow dish, and appurtenant equipment, used for the direct reception of broadcast signals from orbiting satellites.
Satellite dish antenna, height: See "Height of structure."
Satellite earth station: Any device or antenna, including associated mounting devices or antenna-supporting structures, used to transmit or receive signals from an orbiting satellite, including television broadcast signals, direct broadcast satellite services, multi-channel multipoint distribution services, fixed wireless communications signals, and any designated operations indicated in the FCC Table of Allocations for satellite services.
School for the arts: A school where classes in the various fine arts, including painting, sculpting, photography, music, dance, or dramatics are taught, and where such establishment is not otherwise defined as "Educational facilities, primary/secondary," "Educational facilities, college/university," "Studio, fine arts," "Personal improvement services," or "Home occupation."
Screening: A method of visually obscuring one abutting or nearby structure or use from another by the use of fencing, walls, or densely planted vegetation. Screening is intended to substantially but not necessarily totally obscure visual impacts and mitigate noise impacts between adjoining uses, structures, or facilities.
Secretary of the Interior's Standards for Rehabilitation: The Secretary of the Interior's Standards for Rehabilitation, as codified in 36 CFR 67 (U.S. Department of Interior regulations), and Secretary of the Interior's Standards for the Treatment of Historic Properties with Guidelines for Preserving, Rehabilitating, Restoring, and Reconstructing Historic Buildings (Washington, D.C.: U.S. Department of the Interior, National Park Service, Cultural Resource Stewardship and Partnerships, Heritage Preservation Services, 1995), as amended.
Setback: The distance from a property line to the closet projection of a structure or from the closest projection of one structure to the closest projection of another structure.
Sight distance triangle: As defined and set forth in section 2-9 of this appendix. For purposes of this definition, "sight distance" shall mean the distance visible to a driver from his position to other objects or vehicles, when at a point of turning or when stopping a vehicle.
Sign: Any object, device, structure, or fixture, or portion thereof, which is used to announce, advertise, identify, display, or direct or attract attention to an object, person, institution, organization, business, product, goods, service, special promotion, activity, event, or location. The means used to direct or attract attention include, without limitation, objects, devices, fixtures, words, letters, numerals, graphics, figures, emblems, designs, illustration, decoration, symbols, logos, trademarks, colors, or projected illumination or images. For purposes of this appendix, a "sign" does not include "holiday decorations," which shall be defined as decorative elements of a temporary nature intended for the acknowledgement of a holiday or holiday season which contain no commercial messages which advertise or promote a product, service, or business. For definitions associated with signs, see section 7-39 of this appendix.
Single-family dwelling, detached: See "Dwelling, single-family, detached."
Site plan: The drafted proposal for a development, including site plans, maps, and other documentation delineating all easements and other conditions relating to use, location, and bulk of buildings, density of development, parking arrangements, public access, common open space, landscaping, public facilities, and other such information necessary to determine compliance with this appendix.
Sports and recreation, indoor, commercial: The provision of recreation facilities which are predominantly participatory uses, and which are conducted entirely within an enclosed building. Typical uses include tennis or other racquet courts, swimming pools, health and fitness centers, bowling alleys, ice or roller skating rinks, batting cages, paint ball facilities, climbing walls, or similar recreation uses. "Commercial indoor sports and recreation" facilities may include accessory uses, such as snack bars, pro shops, and locker rooms, which are designed and intended primarily for the use of patrons of the principal recreational use. Excluded from this use type are "Gun-firing ranges" or any use which is otherwise specifically listed in the use tables in article 4 of this appendix.
Sports and recreation, outdoor, commercial: The provision of recreation facilities which are predominantly participatory uses, and which are conducted in open or partially enclosed or screened facilities. Typical uses include health and fitness centers, swimming pools, tennis or other outdoor racquet courts, basketball courts, driving ranges, miniature golf, skateboarding courses, batting cages, or similar recreation uses. "Commercial outdoor sports and recreation" facilities may include any accessory uses, such as snack bars, pro shops and clubhouses, which are designed and intended primarily for the use of patrons of the principal recreational use. Excluded from this use type are motorized cart or motorcycle tracks, raceways, drag strips, overnight camping, "Gun-firing ranges," "Paint ball facilities," or any use which is otherwise specifically listed in the use tables in article 4 of this appendix.
Stable, commercial: The boarding, breeding, or raising of horses or ponies not owned by the owner or occupant of the property or the riding of horses or ponies by other than the owner or occupant of the property and their nonpaying guests. Included in this use type are riding academies where instruction in riding, jumping, and showing of horses is offered, and where horses may be hired for riding.
Stockade fence: A fence constructed of vertical wood or vinyl strips, with no intervening spaces, providing a complete visual barrier.
Storefront: That portion of the ground floor of a non-residential building consisting of an entryway and windows, and that is leased to or occupied by an individual tenant, business, or other entity.
Story: That portion of a building, other than a basement, included between the surface of any floor and the surface of the next floor above it, or if there is no floor above it, the space between the floor and the ceiling above the floor of such story.
Street: Any public way permanently open to common and general use for vehicular and pedestrian traffic which provides the primary means of access to abutting lots.
Street line: The dividing line between a street right-of-way and abutting property.
Structure: Anything which is constructed or erected with a fixed location on the ground, or attached to something having a fixed location on the ground, including but not limited to buildings, walls, fences, signs, manufactured homes, and swimming pools (in-ground and above-ground).
Studio, fine arts: An establishment for preparation, display, and sale of individually crafted artwork, jewelry, painting, sculpture, pottery, art photography, leather craft, hand-woven articles, candles, hand-blown glass, and similar items. Such space is primarily a working studio where such artist, artisan, or craftsperson may display and sell work, but such establishment may also include the teaching of classes in the applicable fine art or craft, including the arts associated with vocal or instrumental music, acting, and writing.
Supply pantry: An establishment engaged in the provision or sale of food, clothing, or other essential items at no charge or for less than fair market value where no on-premises consumption of the items being distributed occurs. Such establishments may commonly be referred to as food banks, thrift stores, or clothes banks.
Tattoo parlor: An establishment which offers or practices the placement of designs, letters, scrolls, figures, symbols, or any other kind of marks upon or under the skin of a person with ink or any other substance, resulting in permanent coloration or marking of the skin, by the aid of needles or other instruments designed to touch or puncture the skin, except when performed by a medical doctor or other medical services personnel licensed pursuant to Code of Virginia, title 54.1, as amended, in the performance of his professional duties. A tattoo parlor is classified as a "Personal services establishment."
Telecommunications facility: Any unstaffed facility used for the transmission or reception of radio, television, radar, cellular telephone, personal paging device, specialized mobile radio (SMR), and similar services. Where reference is made to a telecommunications facility, unless otherwise specified or indicated by context, such reference will be deemed to include the antenna or group of antennas, transmission lines, ancillary appurtenances, support structure on which the antenna or other communications equipment is mounted, transmission cables, and any associated equipment shelter. Excluded from this use type are "Amateur radio tower" and "Telecommunications facility, stealth."
Telecommunications facility, stealth: A telecommunications facility that is hidden or not readily detectable by means of camouflage or concealment. "Camouflage" shall mean a way of painting and mounting a telecommunications facility that requires minimal changes to the host structure in order to accommodate the facility. "Concealment" shall mean to enclose a telecommunications facility within an existing structure or appurtenance of a structure resulting in the facility being either invisible or made part of the feature enclosing it. Such structures or appurtenances may include church steeples, bell towers, church spires, clock towers, cupolas, light standards, chimneys, utility poles, and flagpoles displaying flags. For the purposes of the regulations of this appendix, "stealth telecommunications facilities" shall include the use of existing structures or appurtenances of structures in which the facility is concealed by embedding all antennae within the structure or appurtenance, antennas mounted to a water storage tank and not extending more than ten feet above the highest horizontal plane of the tank, and a single antenna array attached to a telecommunications pole constructed and integrated within an existing electric transmission tower in which the height of the pole and antenna array does not exceed ten feet above the existing electric transmission tower.
Telecommunications tower: A vertical projection, including a foundation, designed and primarily used to support one or more antennas or which constitutes an antenna itself, which is commonly referred to as "tower," "cell tower," "communications tower," "telecommunications tower," or "broadcasting tower." Telecommunications towers do not include "stealth telecommunications facilities," but do include roof-mounted and surface-mounted antennas that extend above the roofline. Telecommunications towers are not considered utility equipment.
Temporary family health care structure: A transportable residential structure, providing an environment facilitating a caregiver's provision of care for a mentally or physically impaired person, where such structure is accessory to a single-family detached dwelling and where such structure is primarily assembled at a location other than the site of installation.
Theater, movie or performing arts: A building, or portion of a building, open to the public, which is used primarily for the commercial showing of motion pictures, or for dramatic, operatic, dance, musical or other live performances. Such use may include concessions as an accessory use. Typical uses include motion picture theaters, performing arts theatres, and concert or music halls.
Tourist home: A dwelling in which "guest rooms" are offered or provided to transient guests for compensation, for no more than 14 persons. A "tourist home" does not include "Bed and breakfast," "Boarding house," "Hotel/motel," "Group care facility," "Home occupation," "Accessory use," or any use which is otherwise specifically listed in the use tables in article 4 of this appendix.
Towing service: An establishment engaged primarily in the towing of vehicles or equipment from one location to another, with no sales or repair activity occurring on the lot.
Town: The Town of Clifton Forge, Virginia.
Townhouse. See "Dwelling, townhouse."
Trailer: Any vehicle without motive power designed for carrying property wholly on its own structure and for being drawn by a motor vehicle.
Transportation terminal: A facility for the loading, unloading, and interchange of passengers, baggage, and incidental freight or package express between modes of ground transportation, including bus terminals, railroad stations, and public transit facilities. This use type does not include "Truck terminal."
Travel trailer: See "Recreational vehicle."
Truck terminal: A facility for the receipt, transfer, short-term storage, and dispatching of goods transported by truck. Loading and unloading is carried on regularly, and minor maintenance of the truck fleet is performed. Included in this use type are mail or package distribution facilities, including those operated by the U.S. Postal Service, as well as motor freight companies regulated by the public utility commission or the interstate commerce commission.
Two-family dwelling: See "Dwelling, two-family."
Use: The specific purpose for which land, water, or a structure is designed, arranged, intended, or for which it is or may be occupied or maintained.
Utility: Any person, firm, corporation, municipal agency, or authority duly authorized to furnish to the public, under regulation, electricity, gas, storm water drains, water, sewerage collection and treatment, steam, cable television, or telephone.
Utility distribution or collection, basic: Linear utility features for distribution of utility service to the customer, including electric power lines, water lines, ground water wells, sewer lines, telephone lines, cable television lines, and natural gas lines, and other distribution linear features including transformers and relay and booster devices.
Utility distribution or collection, transitional: Linear utility features for the compression, "step-down of voltage," switching, storage, or other similar function of a utility service that is necessary for distribution of the utility service directly to the customer, including electric or gas compressor substations, water or sewer pump or lift stations, and storage facilities such as water storage tanks.
Variance: A reasonable deviation from the provisions of this appendix regulating the size or area of a lot or parcel of land, or the size, area, bulk, or location of a building or structure, when the strict application of the provisions would result in unnecessary or unreasonable hardship to the property owner, and such need for a variance would not be shared generally by other properties, and provided such variance is not contrary to the intended spirit and purpose of the ordinance, and would result in substantial justice being done. It shall not include a change in use which change shall be accomplished by a rezoning or by a conditional zoning.
Veterinary hospital/clinic: An establishment rendering care, observation, or treatment of domestic animals, including household pets, and which may include medical or surgical treatment and care. The boarding of animals shall be limited to indoors and only on a short-term basis, and shall be necessitated by and directly related to surgery or medical treatment, unless also authorized and approved as a "Kennel." References within this appendix to "outdoor pens or runs" shall mean any outdoor areas and facilities in which animals are exercised, groomed or otherwise cared for.
Warehousing and distribution: An establishment primarily engaged in the storage, warehousing, and dispatching of goods within enclosed structures, or outdoors where permitted. Generally the storage and inventory of goods, materials, or equipment is for manufacturing use, for distribution to wholesalers or retailers, or for inventory ultimately to be distributed directly to the consumer. Accessory uses may include offices, truck fleet parking and maintenance areas, and sorting or repackaging of goods. Typical uses include wholesale distributors, storage warehouses for retail stores, cold storage plants, bus barns, and moving/transfer/storage firms. Excluded from this use type are "Mini-warehouses," the transfer or storage of solid or liquid wastes, the bulk storage of materials which are flammable or explosive or which create hazardous conditions, motor vehicle sales, and "Equipment sales/rental."
Whip antenna: See "Antenna."
Workshop: An establishment primarily engaged in the on-site production of goods by hand manufacturing, hand-crafting such products or piecing together to form a finished product, within a wholly enclosed building, involving the use of hand tools or the use of mechanical equipment commonly associated with residential or commercial uses, or a single kiln. Such hand manufacturing activities may include pottery, assembly of electronics, jewelry-making, or similar activities, and may include the on-site retail sale of goods produced on the premises.
Wrecker yard: Any area or lot, or portions of a lot, which activities include the recovery, removal, and storage of inoperative or damaged motor vehicles or trailers for dismantling, demolition, salvage, or sale of such inoperative or damaged motor vehicles or trailers, or part of such motor vehicles or trailers. For purposes of this definition, "inoperative motor vehicle" shall mean any motor vehicle on which valid license plates or a valid inspection decal is not displayed, or any motor vehicle which has been wrecked, partially or totally dismantled, or disassembled, such that the vehicle cannot be lawfully operated on a public street.
Yard: An open space on a lot, which space is unoccupied and unobstructed from 30 inches above the graded ground level to the sky, except as otherwise provided in this appendix. The term "required yard" where used in this appendix refers to the minimum depth required by the regulations of a particular zoning district to be unoccupied and unobstructed as herein defined, extending from and along the adjacent property line. This is sometimes referred to as "setback," "required setback," and "building setback line."
Yard, front: A yard extending between side lot lines across the front of a lot, the depth of which is the horizontal distance between the front lot line and a line parallel thereto at the building setback line as required by the respective zoning district regulations. (See Figure 11-13.)
Yard, rear: A yard extending along the full length of the rear lot line and back to a line drawn parallel to the rear lot line at a distance (depth) required by the respective zoning district regulations. On corner lots, the rear yard shall be considered as parallel to the street upon which the lot has its lesser dimension. On both corner lots and interior lots, the rear yard shall be at the opposite end of the lot from the front yard. (See Figure 11-13.)
Yard, side: A yard extending from the real line of the required front yard (the "building setback line") to the rear lot line, at a depth required by the respective zoning district regulations, unless otherwise provided for in the supplemental regulations. (See Figure 11-13.)
Yard, side street: A yard extending along a street right-of-way, and not deemed the front lot line per the regulations of this appendix, from the real line of the required front yard (the "building setback line") to the rear lot line, at a depth required by the respective zoning district regulations, unless otherwise provided for in the supplemental regulations. (See Figure 11-13.)
Figure 11-13. Yards—Corner and Interior Lots
Zoning or zoned: The process of classifying land within the town into areas and districts, such areas and districts being generally referred to as "districts," or "zoning districts," by legislative action and the prescribing and application in each area and district of regulations concerning building and structure designs, building and structure placement, and uses to which land, buildings, and structures within such designated areas and districts may be put.
Zoning administrator: The zoning administrator of the Town of Clifton Forge, Virginia, or an authorized agent or designee thereof.
- DEFINITIONS AND RULES OF CONSTRUCTION
For the purposes of the provisions of this appendix, the following rules of construction of language shall apply:
(a)
The specific shall control the general.
(b)
All words used in the present tense include the future tense.
(c)
All words used in the singular include the plural and the plural includes the singular.
(d)
The word "person" includes a firm, association, organization, partnership, trust, company, or corporation, as well as an individual.
(e)
The words "shall," "must," "will," and "may not" are mandatory, meaning an obligation to comply with the particular provision.
(f)
The word "may" is permissive.
(g)
The word "includes" or "including" shall not limit a term to the specified examples, but is intended to extend its meaning to all other instances or circumstances of like kind or character.
(h)
The word "yard" shall mean the required minimum yard.
(i)
References to "days" shall be construed to be business days, excluding weekends and holidays, unless the context of the language clearly indicates otherwise.
(j)
When used with numbers, "up to x," "not more than x," and "a maximum of x," all include x.
(k)
"And" indicates that all connected items or provisions apply.
(I)
"Or" indicates that the connected items or provisions may apply singly or in combination.
(m)
"Either … or" indicates that the connected items or provisions apply singly, but not in combination.
For the purposes of this appendix, the following terms, use types, and words shall be defined as set forth below, unless otherwise provided in this appendix.
Abut or abutting: Having a common border with, or being separated from such a common border only by a street, alley, stream, or railroad tracks.
Access: A means of approach or admission.
Accessory structure: A structure detached from but located on the same lot as a principal building and customarily accessory and clearly incidental and subordinate to the principal building and used for purposes customarily incidental to that of the principal building.
Accessory use: A use of land or a structure, or portion thereof, which is customarily accessory and clearly incidental and subordinate in area, extent, and purpose to the principal use of the land or structure and located on the same lot as such principal use. An accessory use may not be accessory to another accessory use.
Active solar collector: Any device or combination of devices or other element which relies on sunshine as an energy source and is capable of collecting not less than 25,000 BTUs on a clear day for use in one or more of the following:
(1)
The heating or cooling, or both, of a building or other structure;
(2)
The heating of water;
(3)
Industrial, commercial or agricultural processes; or
(4)
The generation of electricity.
The use of the solar collector may include other purposes such as serving as part of a roof of a structure, serving as a window or wall, or otherwise serving as a structural member of a structure.
Adult use: As defined and set forth in section 6-4 of this appendix.
Agricultural operations: The use of property for the production of agricultural, horticultural, or floricultural products including livestock, poultry, eggs, dairy products, vegetables, trees, or similar products. A "community garden" or a garden accessory to a residential use shall not be deemed an agricultural operation. Agricultural operations shall not include principal industrial uses related to food processing or distribution.
Amateur radio tower: A freestanding or building-mounted structure, including any base, tower or pole, antenna, and appurtenances, intended for noncommercial airway communication purposes by a person holding a valid amateur radio operator licensed by the federal communications commission (FCC).
Amphitheater: An open-air (outdoor) establishment for the performing arts consisting of a central space or stage for performances, which may be open to the sky or partially covered or enclosed, and open-air tiered or sloped seating for audiences, generally arranged in a semi-circular pattern in relation to the performance area.
Amusement, indoor, commercial: An establishment primarily engaged in the provision of multiple amusement or entertainment devices or machines or games of skill, chance, or scoring to the general public for a fee, and where all such activity occurs enclosed in a building. Such games and devices include billiards, pool, table tennis, dartboards, foosball, pinball, video games, and other similar amusement or entertainment devices, whether or not they are coin or token operated or require the payment of money to have them activated. Typical uses include game rooms, billiard and pool halls, and video arcades. "Commercial indoor amusement" establishments may include accessory uses, such as snack bars, which are designed and intended primarily for the use of patrons of the amusement use. "Commercial indoor amusement" does not include a "Gun-firing range" or any use which is otherwise specifically listed in the use tables in article 4 of this appendix.
Antenna: Any apparatus, or group of apparatus, designed for transmitting or receiving electromagnetic waves that includes, but is not limited to, telephonic, radio, or television communications. Antennas include dish antennas, panel antennas, whip antennas, or similar devices used for broadcast, transmission, or reception of radio frequency signals, but do not include satellite earth stations. For purposes of this definition, the following definitions shall apply:
(1)
Dish antenna: A parabolic, spherical, or elliptical antenna intended to receive wireless telecommunications.
(2)
Panel antenna: A directional antenna designed to transmit or receive signals in a directional pattern that is less than 360 degrees.
(3)
Whip antenna: A cylindrical, omnidirectional antenna designed to transmit or receive signals in a 360-degree pattern
Applicant: The party applying for approval of a zoning permit, sign permit, certificate of occupancy, certificate of appropriateness, or site plan, requesting the approval of a rezoning, conditional rezoning, conditional use, or variance, or appealing a decision of the zoning administrator, as required by this appendix.
Application: The completed form(s) and all accompanying documents, exhibits, and fees required of an applicant for review, approval, or permitting purposes for a zoning permit, sign permit, certificate of occupancy, certificate of appropriateness, site plan, rezoning, conditional rezoning, conditional use, variance, or an appeal of a decision of the zoning administrator.
Appurtenance: A feature or structure attached to a building that is used for or in connection with a building, incidental to such building and for its benefit.
Assembly hall: A building designed for public assembly for special events or regularly scheduled programs, and available to the general public for a fee. Typical events or programs include banquets, meetings, seminars, receptions, and weddings.
Automobile dealership: An establishment which displays for sale or lease, from the premises, new and/or used automobiles, sport utility vehicles, pick-up trucks, vans, or motorcycles for sale or lease, and which establishment may engage in the performance of warranty repair work and other major and minor repair and maintenance service conducted as an accessory use. Such use may include the incidental towing of vehicles to the lot expressly for the purposes of scheduled repair by the automobile dealership establishment. This use type does not include the storage of wrecked or abandoned vehicles. The exterior display of motor vehicle inventory for sale or lease shall be considered an outdoor showroom for customers to examine and compare products and shall not be considered "outdoor storage" for purposes of this appendix, provided such exterior display is limited to such motor vehicle inventory, is accessible to the general public, and does not include materials, parts, or similar products. Excluded from this use type is "Equipment sales/rental."
Automotive parts/supply, retail: The retail sales of automobile parts and accessories. Typical uses include automobile parts and supply stores which offer new and factory rebuilt parts and accessories. This use type does not include establishments dealing exclusively in used parts.
Bakery, confectionary, or similar food production, retail: An establishment primarily engaged in the preparation, cooking, baking, and retail sale of baked products, confectionary products, or similar food products on the premises. The retail sale of such food products is intended primarily for off-site consumption, but such use may include incidental food service on-site. While on-site retail sales is a required component of this use, this use may also include the wholesale sales of such food products.
Bakery, confectionary, or similar food production, wholesale: An establishment engaged in the preparation, cooking, baking, and selling of baked products, confectionary products, or similar food products intended solely for wholesale sales or institutional off-premises distribution, and where over-the-counter or other retail dispensing of baked products, confectionary, or similar prepared food products does not occur.
Basement: That portion of the building partly underground, but having more than half its clear height below the average grade of the adjoining ground. A basement shall not be considered a story.
Bed and breakfast: An owner-occupied, single-family detached dwelling in which bedrooms are provided to overnight guests for compensation, on a daily or weekly basis, and offering breakfast meals to each guest to whom overnight lodging is provided. The serving of meals other than breakfast, or the serving of breakfast to other than overnight guests, shall be considered a "Restaurant."
Beverage or food processing: A facility where beverages or foods, excluding poultry and animal slaughtering and dressing, are produced or processed and packaged for local, regional, or national distribution. This use type includes beverages, bottled water production, breweries, bottling facilities, dairy product processing or bottling, canned and preserved fruit and vegetables and related processing, ice plants, and miscellaneous food preparation from raw products. This use type does not include meat packing or poultry processing, "Bakery, confectionary, or similar food production, wholesale," or any use which is otherwise specifically listed in the use tables in article 4 of this appendix.
Board of architectural review: The board of architectural review of the Town of Clifton Forge, Virginia.
Board of zoning appeals: The board of zoning appeals of the Town of Clifton Forge, Virginia.
Boarding house: A dwelling, or portion thereof, where up to, but not more than, six furnished bedrooms are provided for lodging for compensation on a weekly, monthly, or longer basis, where no more than a total of six persons reside, where the rental or leases are for definite periods of time, where such establishment is not open to the public or overnight guests, and where the owner or operator resides on the premises. No meals are provided to outside guests. Such establishments provide a common kitchen facility and shared bathroom facilities. Included in this use type are rooming houses and boarding houses.
Body piercing establishment: An establishment which engages in the act of penetrating the skin to make a hole, mark, or scar, generally permanent in nature. For purposes of this definition, "body piercing" does not include the use of a mechanized, pre-sterilized ear piercing system that penetrates the outer perimeter or lobe of the ear, or both. A body piercing establishment is classified as a "Personal services establishment."
Botanical garden: A public or private facility for the demonstration and observation of the cultivation of flowers, fruits, vegetables, or ornamental plants.
Brewpub: A restaurant/brewery that sells the majority of its beer on site, which beer is brewed primarily for sale in the restaurant and on-site bar. The beer is often dispensed directly from the brewery's storage tanks. Where allowed by law, brewpubs may sell beer "to go" and/or distribute to off-site accounts. Off-site sales are limited and are not the principal use. A "brewpub" is classified as a "Restaurant."
Buffer yard: A strip of land, which may have trees and shrubs planted or solid fences or walls installed, for screening purposes, designed to set apart and protect one space or activity from an adjacent space or activity.
Building: A structure with a roof supported and wholly enclosed by walls and intended for shelter, housing, or enclosure of persons, animals, activity, process, equipment, goods, or materials of any kind.
Building Code: The Uniform Statewide Building Code, adopted pursuant to the Code of Virginia, as amended, and section 22-25 of this Code.
Building facade or building face: That portion of any exterior elevation on a building extending from grade to top of the parapet, wall, or eaves along the entire width of the building elevation. In this appendix, the terms "building facade" and "building face" have the same meaning and may be used interchangeably.
Building facade, primary: That building facade which faces a public right-of-way and contains the principal entrance to the building.
Building frontage: The horizontal linear dimension of the exterior wall of a building that faces upon a public street or which building wall contains the public entrance.
Building height: See "Height of structure."
Building line: A straight line extending along the front, side, or rear of a building, parallel to the street right-of-way, which passes through the point of the principal building nearest that street right-of-way. Such point shall be 30 inches or greater above the graded ground level and shall exclude any permitted front yard encroachments. (See Figure 11-1.)
Figure 11-1. Building Line
Building setback line: The required minimum distance between the closest projection of a building, which projection is 30 or more inches above grade, and the front lot line or, where applicable, the centerline of the abutting street right-of-way which constitutes the lot front. All area between the required building setback line and the front lot line shall constitute a required yard. (See Figure 11-2.)
Figure 11-2. Building Setback Line
Building maintenance services: An establishment engaged in the cleaning of dwellings, offices, or places of business, or providing exterminating services, and rendering such service on a fee or contract basis.
Business or nonindustrial trade school: A specialized instructional establishment that provides education or training in business, commerce, vocations, trades, or other similar activity or occupational pursuits of a non-industrial nature, and not otherwise defined as "Educational facilities, college/university," "Educational facilities, primary/secondary," or "Home occupation." Typical vocations include accounting, data processing, computer repair, secretarial, barbering or hair dressing, and other trades, activities or occupations of a non-industrial nature. Incidental instruction services in conjunction with another principal use shall not be considered a business or non-industrial trade school.
Business support services: An establishment engaged in the sale, leasing, or repair of office equipment, supplies and materials, or the rendering of services used by office, professional, and service establishments. Typical uses include office equipment and supply firms, small business machine repair shops, convenience printing and copying establishments, blueprinting and photo-stating services, lithographic services, commercial art and graphic design services, management and consulting services, office security services, advertising and mailing services, data and records storage, temporary labor services, and other professional, scientific, or technical services or administrative or support services not otherwise specifically listed in the use tables in article 4 of this appendix.
Canopy: A structure made of permanent construction without pillars or posts, which is totally or partially attached to a building for the purpose of providing shelter to patrons or motor vehicles, or as a decorative feature on a building wall. A canopy is not a completely enclosed structure and cannot be raised or retracted. A freestanding, permanent cover, open on at least three sides and located over an outdoor service area, such as a gas pump island, shall also be considered a canopy.
Carport: A roofed space, open on three sides, one story in height, covered with a flat or hipped roof and ordinarily used as a shelter under which vehicles are driven or temporarily parked.
Car wash: An establishment where, for compensation, the washing, cleaning, or waxing of motor vehicles, including cars, vans, sport utility vehicles, and pick-up trucks, is conducted. Car washes include manual facilities where cleaning is performed by employees of the facility, automatic facilities using conveyors and blowers, and self-service facilities in which cleaning equipment and facilities are available for use by members of the public, including coin-operated equipment. The term "car wash" includes auto detailing services, but does not include facilities that wash or steam-clean engines, buses, trailers, tankers, or tractor-trailers. This use type does not apply to the washing of commercial fleets as an accessory use to the principal use with which the fleet is associated.
Caterer, commercial: The service of preparing and delivering food for off-site consumption at special events, including corporate activities, banquets, parties, weddings, and similar functions, for a fee, with such service generally including the serving of food at such special function. For purposes of this definition, a "commercial caterer" does not include catering services associated with a principal use having a retail component including a "Restaurant" or "Bakery, confectionary, or similar food production, retail."
Cemetery: Any land or structure used or dedicated to be used for the interment of human remains, either by earth burial, entombment in a mausoleum vault or crypt, inurnment of ashes in a columbarium, or a combination thereof, together with all uses necessarily or customarily associated with interment of human remains, benches, ledges, walls, graves, roads, paths, landscaping, and soil storage consistent with federal, state, and local laws on erosion and sediment control. A "cemetery" may include a chapel, funeral home, and necessary administrative offices, and maintenance and storage areas, provided they are located and completely operated within the boundary of the cemetery and are accessory to the cemetery. The sprinkling of ashes or their burial in a biodegradable container on church grounds or their placement in a columbarium on church property shall not constitute the creation of a "cemetery."
Circuit court: The circuit court of Alleghany County in the Commonwealth of Virginia.
Clinic: A facility providing medical, psychiatric, or surgical service for sick or injured persons exclusively on an out-patient basis including emergency treatment, diagnostic services, training, administration, and services to outpatients, employees, or visitors. The term "clinic" includes immediate care facilities, where emergency treatment is the dominant form of care provided at the facility.
Club: Buildings or facilities, or portion thereof, owned or operated by a nonprofit corporation, association, or other formal association of persons for private social, civic, educational, or recreational purposes, to which access is restricted to members of such groups and their guests, and which is not operated primarily for profit or to render a service which is customarily carried on as a business. Such principal use may include accessory uses such as recreational and banquet facilities. A "club" does not include a building in which members reside.
Commercial: Any wholesale, retail, or service business activity established to conduct trade for a profit.
Commercial motor vehicle: Any motor vehicle or trailer used, designed, or maintained for the transportation of persons or property for compensation or profit, and which is one of the following types of vehicles: truck, tractor cab, farm tractor, construction equipment, motor passenger bus (excluding school bus currently used by a public or private institution of learning), trailer, semi-trailer, taxi, limousine, tow truck, dump truck, roll back tow truck, flatbed truck, or step van, but not including a van, pickup truck, and panel truck.
Communications services: An establishment primarily engaged in the provision of broadcasting and other information relay services accomplished through the use of electronic and telephonic mechanisms. Typical uses include television studios, radio stations, cable television studios, telecommunication service centers, telegraph service offices, and film and sound recording facilities. Excluded from this use type are facilities classified as a "Telecommunications tower" or "Telecommunications facility."
Community food operation: A facility where prepared food is distributed, at no charge or for less than fair market value, for immediate consumption or where on-premises consumption of the food occurs. A "community food operation" is not a "Restaurant" as elsewhere defined and used in this appendix.
Community garden: The active cultivation of fruits, flowers, vegetables, or ornamental plants by more than one person or family. For purposes of this appendix, this use does not include "Retail sales."
Community market: From a permanent, fixed location, the offering for retail sale of fresh produce, prepared food items, other agricultural items, or handmade crafts directly to the consumer from stalls or tables which are not enclosed in a building, where the vendors are generally individuals who have raised the vegetables or produce or have made the crafts or have taken the same on consignment for retail sale.
Community recreation: A private recreational facility for use solely by the residents and guests of a particular residential development or residential neighborhood, including indoor and outdoor facilities. These facilities are usually proposed or planned in association with development, are owned or operated by a homeowners' association, condominium association, or similar entity, and are located within or adjacent to such residential development.
Conditional use: A special use, that is a use not permitted in a particular district except by a conditional use permit granted under the provisions of this appendix.
Conditional zoning: As part of classifying land within a locality into areas and districts by legislative action, the allowing of reasonable conditions governing the use of such property, such conditions being in addition to the regulations provided for a particular zoning district or zone by the overall zoning ordinance.
Construction sales and services: An establishment primarily engaged in retail or wholesale sales, from the premises, of materials which are generally essential to the construction of buildings or other structures, but specifically excluding automobile or equipment supplies, "Contractor shop, general or special trade," or any use which is otherwise specifically listed in the use tables in article 4 of this appendix. Typical uses include building material stores and home supply establishments.
Construction yard: An establishment housing the facilities of a business primarily engaged in construction activities, including the outside storage of materials, equipment, or supplies. Typical uses are building contractor's yards.
Consumer repair service establishment: An establishment primarily engaged in repair or maintenance services to individuals and households, rather than businesses, but excluding motor vehicle and equipment repair use types and "Personal services." Typical uses include appliance, computer, television, or clock repair shops, bicycle repair, watch or jewelry repair shops, locksmiths, or repair of musical instruments.
Contractor/subcontractor: Any business or person who agrees to furnish materials or perform services at a specified price, pertaining to the construction or maintenance of buildings or lands, including general building contractors engaged in the construction of residential or commercial structures; special trade contractors who assist in building construction or remodeling, such as carpentry, electrical, masonry, painting, metalworking, cabinetmaking, flooring installation, duct work, plumbing, heating, air conditioning, and roofing; landscape contractors engaged in the decorative and functional alteration, planting, or maintenance of grounds; furniture refinishing or upholstery (excluding auto upholstery), sign making, or similar work.
Contractor or tradesman shop, general or special trade: An establishment where a contractor/subcontractor, as defined above, maintains its principal office or a permanent business office, where the establishment may engage in the retail sale of goods manufactured, assembled, or serviced on the premises, and where such establishment engages in one or both of the following:
(1)
The fabrication, assembly, servicing, or storage of products or materials on site within a wholly enclosed building; or
(2)
Where permitted by this appendix, the outdoor storage of construction equipment and other materials customarily used in the trade carried on by the contractor but not including any construction or demolition debris or waste materials.
This use type does not include "Contractor shop, heavy construction" as defined below.
Contractor shop, heavy construction: An establishment where a heavy construction contractor engaged in activities such as paving, highway construction, utility construction, or similar work, maintains its principal office or a permanent business office, and where such establishment engages in one or all of the following:
(1)
The storage of products or materials on site within a wholly enclosed building;
(2)
The outdoor storage of construction equipment or other commercial motor vehicles on the site; or
(3)
Where permitted by this appendix, the outdoor storage of materials customarily used in the trade carried on by the contractor but not including any construction or demolition debris or waste materials.
Cultural services: A library, museum, or similar public or quasi-public establishment displaying, preserving and exhibiting objects of community and cultural interest in one or more of the arts or sciences. Such facility does not include the regular sale of the literary, musical, artistic, or reference materials or objects collected.
Day care center, adult: A regularly operating, structured service arrangement for the provision of supervised, communal setting and supplementary care and protection to four or more aged, infirm, or disabled adults who reside elsewhere, during only a part of a 24-hour day. Such center shall not include any overnight stays or overnight sleeping facilities. Services may include aid in personal hygiene, eating and drinking, ambulation, or recreation. This term does not include the home or residence of an individual who cares only for persons related to such resident by blood or marriage, a "day care home, adult," or any facility, or portion thereof, that is licensed by the state board of health or the state department of behavioral health and developmental services.
Day care center, child: A child day program offered to two or more children under the age of 13 in a facility that is not the residence of the provider or of any of the children in care, or to 13 or more children under the age of 13 at any location. A "child day program" means a regularly operating service arrangement for children where, during the absence of a parent or guardian, a person or organization has agreed to assume responsibility for the supervision, protection, and well-being of a child under the age of 13 for less than a 24-hour period. The term "Day care center, child" includes nursery schools, preschools, daytime care, after-school care, and similar uses but excludes public and private schools or any facility offering care to individuals for a full 24-hour period.
Day care home, adult: Adult day care services offered in the residence of the provider, serving one through five adults at any one time, exclusive of any adult related to the provider by blood, marriage, or adoption, when at least one adult receives care for compensation. Adult day care services means a regularly operating service arrangement for older adults or adults with disabilities where the supplemental care, protection, and well-being of the adults is for less than a 24-hour period.
Day care home, child, small: A child day program offered in the residence of the provider, serving one through five children at any one time, exclusive of any children related to the provider by blood, marriage, or adoption and any children who reside in the home, when at least one child receives care for compensation. No "Day care home, child, small," shall care for more than four children under the age of two, including the provider's own children and any children who reside in the home, unless the child day care home is licensed or voluntarily registered, except that a child day care home where the children in care are all grandchildren of the provider shall not be required to be licensed. A "child day program" means a regularly operating service arrangement for children where, during the absence of a parent or guardian, a person has agreed to assume responsibility for the supervision, protection, and well-being of children under the age of 13 for less than a 24-hour period.
Day care home, child, large: A licensed child day program offered in the residence of the provider for compensation, serving six through 12 children at any one time, exclusive of any children related to the provider by blood, marriage, or adoption and any children who reside in the home. Any "Day care home, child, large," shall be required to be licensed; however, where the children in care are all grandchildren of the provider, licensing is not required. A "child day program" means a regularly operating service arrangement for children where, during the absence of a parent or guardian, a person has agreed to assume responsibility for the supervision, protection, and well-being of children under the age of 13 for less than a 24-hour period.
Density: A measure of dwelling units or bedrooms per square feet for each lot.
Drive-through facility: A non-residential use which provides a service or product directly to a customer who drives a motor vehicle onto the premises and to a window or mechanical device through or by which the customer completes a service transaction or purchases a product without exiting the motor vehicle. This use does not include the selling of fuel at a service station or retail fuel pumps or the functions of a car wash, but does include the drive-up services and windows of uses such as banks, restaurants, pharmacies, dry cleaners, and similar establishments.
Driveway: A private way which establishes a connection for vehicles between an off-street parking space or loading space and a street, or for the movement of motor vehicles from one lot to another.
Dumpster: A large metal bin for refuse designed to be hoisted onto a specially equipped truck for emptying or hauling away.
Dwelling: A building, or portion of a building, designed to be used for continuous, year-round residential purposes, and containing one or more independent housekeeping units.
Dwelling, manufactured home: A structure subject to federal regulation, which is transportable in one or more sections; is eight body feet or more in width and 40 body feet or more in length in the traveling mode, or is 320 or more square feet when erected on site; is built on a permanent chassis; is designed to be used as a single-family dwelling, with or without a permanent foundation, when connected to the required utilities; and includes the plumbing, heating, air-conditioning, and electrical systems contained in the structure.
Dwelling, multifamily: A building, or portion thereof, designed for the continuous, year-round residential occupancy of three or more families, regardless of the method of ownership, with the number of families in residence not exceeding the number of dwelling units provided.
Dwelling, single-family, detached: A site built, modular, or industrialized building designed exclusively as one dwelling unit for occupancy by one family only, which is located on its own individual lot, and which is not attached to any other dwelling by any means.
Dwelling, townhouse: A one-family dwelling unit, with its own independent entrance at ground level and its own independent rear access to the outside, which is part of a building consisting of three or more one-family dwelling units, attached horizontally in a linear arrangement and separated by common, un-penetrated vertical walls extending from ground to roof. This use is sometimes called a rowhouse.
Dwelling, two-family: A building on an individual lot containing two dwelling units, designed for occupancy by not more than two families. This use is commonly referred to as a duplex.
Dwelling unit: A room or group of connected rooms occupied or capable of being occupied as an independent and separate housekeeping establishment by only one family, and which contains independent living, sleeping, cooking, eating, and sanitation facilities. A "dwelling unit" does not include a tent, seasonal quarters, travel trailer, or room in a "Hotel/motel," "Boarding house," or "Tourist home."
Eave: The projecting overhang at the lower edge of a roof and extending from a primary wall or support. (See Figure 11-3.)
Figure 11-3. Eave
Educational facilities, college/university: An institution providing full-time or part-time education beyond the high school level and authorized by the Commonwealth of Virginia to award associate, bachelor, master, or doctoral degrees. This use type may include academic buildings, administrative facilities, dormitories for students, special housing for faculty, parking areas, dining halls, and other physical features associated with the college or university use. Examples include universities, liberal arts colleges, community colleges, nursing and medical schools not accessory to a hospital, and seminaries.
Educational facilities, primary/secondary: A public, private, or parochial school offering instruction at the elementary, junior or senior high school level in the branches of learning and study required to be taught in the public schools of the Commonwealth of Virginia. Examples include public and private daytime schools, boarding schools, and military academies. This use type does not include preschools, "Business or nonindustrial trade school," or "Industrial trade school."
Elderly: Persons of 55 years of age and older.
Entertainment establishment: An eating and drinking establishment where entertainment is provided, including magicians, comedians, dancers, stage performances or music performances by more than one instrument or amplified music, or an establishment in which more than ten percent of the total floor area is designed or used as a dance floor, or where an admission fee is directly collected, or some other form of compensation is obtained, for dancing. This use type includes lounges, discos, nightclubs, dance halls, music or dance clubs, and similar facilities. Excluded from this use type are "Sports and recreation, indoor, commercial," "Amusement, indoor, commercial," and any uses which are otherwise specifically listed in the use tables in article 4 of this appendix.
Equipment sales/rental: An establishment primarily engaged in the display, sale, lease, or rental of vehicles or other apparatus commonly used in commercial, industrial, agricultural, or construction enterprises, including tools, trucks, tractors, trailers, bulldozers, backhoes, rollers, lifts, loaders, and similar construction equipment, agricultural implements, and industrial equipment or machinery. Included in this use type is the incidental maintenance and servicing of such equipment.
Establishment: Any entity or individual conducting a business, profession, or trade; and any entity or individual conducting a civic, community service, or nonprofit activity.
Family: The term "family" shall be defined as follows:
(1)
One or more persons related by blood, marriage, or adoption, or under approved foster care, occupying a single dwelling unit and living and cooking together as a single housekeeping unit; or
(2)
Up to and including three persons unrelated by blood, marriage, or adoption, or under approved foster care, occupying a single dwelling unit and living and cooking together as a single housekeeping unit; or
(3)
Up to and including eight persons with mental illness, intellectual disability, or developmental disabilities who reside with one or more resident counselors or other staff persons in a residential facility for which the department of behavioral health and developmental services is the licensing authority pursuant to the Code of Virginia, as amended; for purposes of this definition, mental illness and development disability shall not include current illegal use of or addiction to a controlled substance as defined in Code of Virginia, § 54.1-3401, as amended; or
(4)
Up to and including eight aged, infirm, or disabled persons who reside with one or more resident counselors or other staff persons in a residential facility for which the department of social services is the licensing authority pursuant to the Code of Virginia, as amended.
Financial institution: The provision of financial and banking services to consumers or clients. In addition to walk-in services for customers on site, such use may also include their support services such as call centers, training centers, and offices. Typical uses include banks, savings and loan associations, credit unions, lending establishments, and mortgage offices.
Flea market: A market established at a permanent, fixed location, in an open area or within a structure where goods are offered for sale to the general public by independent vendors from open, semi-open, or temporary stalls, tables, or other spaces and where there are ordinarily no long-term leases between sellers and operators.
Floodplain: For the definition of floodplain and terms associated with floodplain, see section 5-20 of this appendix.
Floor area, gross: The sum of the horizontal areas (floors) of the several stories of a building or buildings, measured from the exterior surfaces of the exterior walls, or in the case of a common wall separating two buildings, from the centerline of such common wall. Gross floor area shall include the total floor area of all buildings situated on a lot. Gross floor area shall include exterior balconies, mezzanines, porches, and attached carports. Gross floor area shall not include interior parking and loading spaces or air spaces above atriums.
Floor area, net: The gross floor area of a building excluding hallways, stairwells, utility rooms, and other areas not meant for habitation or public service. For the purpose of this appendix, net floor area shall equal 75 percent of the gross floor area.
Fueling station: Any lot, or portion thereof, with fuel pumps and underground storage tanks for the wholesale sales of motor vehicle fuels or oils, generally by contract, or for the fueling of motor vehicles directly associated with a commercial establishment. A fueling station is a stand-alone use which does not include a "Gasoline station" or fuel pump areas on the site of a commercial or industrial establishment for purposes of servicing its own fleet of motor vehicles.
Funeral home: An establishment engaged in undertaking services for the deceased, including preparing the dead for burial and arranging and managing funerals. A funeral home, for purposes of this appendix, includes a funeral chapel and may include a crematorium as an accessory use.
Gaming establishment: The operation or conducting of any games of chance for the return of money, cash, or prizes, or anything that could be redeemed for money, cash, or prizes. "Gaming establishments" include bingo halls, off-track betting parlors, and the operation of games of chance played with cards or mechanical or electro-mechanical devices. This definition does not apply to the Virginia Lottery or games of chance operated by charitable organizations licensed under the Commonwealth of Virginia.
Garage: A building, accessory to a permitted principal residential structure, providing for the storage of one to three motor vehicles owned, leased, or used by the occupants of the dwelling to which it is accessory, and in which no business, occupation, or service for profit is conducted.
Garden center: An establishment primarily engaged in retail or wholesale (bulk) sale, from the premises, of trees, shrubs, seeds, fertilizers, pesticides, plants and plant materials primarily for agricultural, residential, and commercial consumers. Such establishments typically sell products purchased from others, but may sell some material which they grow themselves. The exterior display of inventory for sale shall not be considered "outdoor storage" for purposes of this appendix. Typical uses include nurseries, plant stores, and lawn and garden centers.
Gasoline station: Any establishment, or portion thereof, with fuel pumps and underground storage tanks for retail sale to the public of motor vehicle fuels or oils, which establishment may include the sale of propane or kerosene as accessory uses.
Glare: The effect produced by brightness directly from a light source sufficient to cause annoyance, discomfort, or loss in visual performance and visibility. Glare may result from insufficiently shielded or inappropriately aimed light sources in the field of view.
Government administrative services: Governmental offices providing administrative, clerical, or public contact services that deal directly with the citizen. Typical uses include administrative offices of the federal, state, county, and town, courthouses, and postal services directly available to the consumer operated by the United States Postal Service. Excluded from this use type are "Public safety services," "Public maintenance and service facility," and any use which is otherwise specifically listed in the use tables in article 4 of this appendix.
Group care facility: A residential facility or dwelling unit housing persons unrelated by blood, marriage, adoption, or guardianship, including congregate homes, group care homes, halfway houses, nursing homes, and transitional living shelters as defined below. Excluded from "group care facility" is any group of persons which constitutes a "family" as defined in this appendix.
(1)
Congregate home: A group care facility providing accommodation and supervision to individuals or families where medical care is not a major element and including homes for orphans, foster children, veterans, victims of domestic violence including battered men, women or children, the elderly, pregnant teenagers, nonresident families of hospitalized patients, mentally handicapped, or similar uses.
(2)
Group care home: A group care facility in which more than eight individuals with mental illness, intellectual disability, or developmental disabled persons reside, with one or more resident counselors or other staff persons.
(3)
Halfway house: A group care facility providing accommodation, rehabilitation counseling, and 24-hour a day on-site supervision to persons suffering from alcohol or drug addiction, or persons suffering from similar disorders, or persons re-entering society after being released from a correctional facility or other institution.
(4)
Nursing home: A group care facility providing long term accommodation to the elderly, mentally or physically handicapped, or other individuals incapacitated in some manner for medical reasons and where primary or non-primary medical treatment facilities are a component of the use. Excluded from this use type are facilities providing surgical or emergency medical services and facilities providing care for alcoholism, drug addiction, mental disease, or communicable disease.
(5)
Transitional living shelter: A group care facility providing shelter to the homeless and generally integrated with other social services and counseling programs to assist in the transition to self-sufficiency through the acquisition of a stable income and permanent housing.
Gun-firing range: The use of a structure or land for the discharging of firearms for the purposes of target practice or temporary competitions, with such use conducted entirely within a building, within a partially enclosed structure, or in the open.
Guarantee: A performance bond, letter of credit, or other form of surety acceptable to the town attorney and the town manager, which is held or provided as security for the execution, completion, or existence of a requirement of this appendix or a condition imposed with the granting of a variance or conditional use permit.
Guest room: A room used, intended to be used, arranged, or designed to be used by one or more guests for sleeping purposes, in which no provision is made for cooking, and for which compensation is paid.
Health official: The director of the town's department of health or an authorized agent or designee thereof.
Height of structure: Height of structure shall be defined and measured as follows:
(1)
Building or roofed structure, height: The vertical distance measured from the average ground level on all sides of the structure to the level of the highest point of the roof or top of a structure having a flat roof, or the mean level between the eaves and the highest point of the roof of a structure having a pitched roof. (See Figure 11-4.) This distance is calculated by measuring separately the average height of each building wall, then averaging them together. (See Figure 11-5.)
Figure 11-4. Measuring Heights—Roof Types
Figure 11-5. Building Height Using Average Ground Level
(2)
Fence or wall, height: The vertical distance from the average level of the ground adjacent to the fence or the wall to the top of the highest projection.
(3)
Retaining wall, height: The vertical distance from ground level on the highest side of the retaining wall. (See Figure 11-6.)
Figure 11-6. Measuring Heights—Retaining Wall
(4)
Satellite dish antenna, height: The vertical distance from the ground level at the bottom of the base which supports the antenna to the highest point of the dish antenna when positioned for operation (see Figure 11-7)
Figure 11-7. Measuring Heights—Satellite Dish Antenna
Home occupation: An activity conducted for gain as an accessory use within a dwelling unit or within an accessory structure located on the same lot as the dwelling unit, and conducted by the resident thereof, and where the use is limited in extent and incidental and secondary to the use of the dwelling unit for residential purposes and does not change the character of the dwelling unit or the lot on which the dwelling unit is located.
Hospital: An institution, licensed by the state department of health, providing primary health services and medical, psychiatric, or surgical care for sick or injured persons, primarily on an in-patient basis, and including as an integral part of the institution, ancillary facilities for outpatient and emergency treatment, diagnostic services, training, research, administration, and services to patients, employees, or visitors. This use type excludes any use which is otherwise specifically listed in the use tables in article 4 of this appendix.
Hotel/motel: A building or group of attached or detached buildings in which lodging units are habitually offered to the public, for compensation, on an overnight or weekly basis, and in which ingress and egress to and from all rooms are made through an inside lobby or office supervised by a person in charge at all hours. As such, it is open to the public in contradistinction to a "Boarding house" or "Group care facility" as defined in this appendix. A hotel or motel is designed, used, or intended for the accommodation of travelers on a temporary basis. A hotel/motel includes furnished rooms, a lobby, clerk's desk or counter, facilities for registration, and daily linen and housekeeping services. Such use may also include "Restaurants," meeting rooms, and recreational facilities.
Impervious surface: Any man-made surface or material that does not readily absorb water or that substantially reduces or prevents the infiltration of storm water. For purposes of this appendix, impervious surfaces shall include, without limitation, roofs, decks, sidewalks, outdoor storage areas, and parking and other areas paved with asphalt, concrete, compacted sand, compacted gravel, or clay.
Improved street or improved alley: A street or alley that has a paved surface.
Industrialized building: A combination of one or more sections or modules, subject to state regulations and including the necessary electrical, plumbing, heating, ventilating and other service systems, manufactured off-site and transported to the point of use for installation or erection, with or without other specified components, to comprise a finished building. Manufactured homes defined in Code of Virginia, § 36-85.3, as amended, and certified under the provisions of the National Manufactured Housing Construction and Safety Standards Act shall not be considered industrialized buildings for the purpose of this definition and appendix.
Industrial trade school: A specialized instructional establishment for teaching industrial trade skills in which machinery or industrial vehicles, including heavy trucks, is employed as a means of instruction. This use type shall not be deemed to include "Educational facilities, primary/secondary," "Educational facilities, college/university," "Home occupation," or incidental instruction services provided in conjunction with another principal use.
Kennel: The keeping, raising, breeding, training, showing, selling, or boarding of dogs or cats. Such activity shall not be considered a kennel where accessory to a principal residential use, provided that not more than a total of five dogs and cats exceeding four months of age are kept, of which total no more than three are dogs. References within this appendix to "outdoor pens or runs" shall mean any outdoor areas and facilities in which animals are exercised, boarded, groomed or otherwise kept or cared for.
Laboratory: An establishment primarily engaged in performing scientific or industrial research or testing activities in technological fields or an establishment primarily engaged in analytical or diagnostic services to medical doctors or dentists. Typical uses include the provision of bacteriological, biological, x-ray, pathological, or similar analytical or diagnostic services to medical doctors or dentists; the production, fitting, or sale of optical or prosthetic appliances; and biotechnology laboratories, engineering laboratories, environmental laboratories for the analysis of air, water, and soil, and pharmaceutical laboratories only involved in research and development. Excluded from this use type are any laboratories which mass produce one or more products directly for the consumer market
Landscaping: An area consisting of planting materials including, but not limited to, trees, shrubs, ground covers, grass, flowers, landscaping gravel, decorative rock, bark, mulch, and other similar materials.
Laundromat: A facility where patrons, for a fee, wash, dry, or dry clean clothing or other fabrics in machines operated by the patron. A "laundromat" is classified as "Personal services."
Laundry: An establishment primarily engaged in the provision of laundering, cleaning, or dyeing services other than those classified as "Personal services." Typical uses include bulk laundry and cleaning plants, diaper services, linen supply services, and carpet cleaning plants.
Live-work unit: A structure or portion of a structure combining a residential living space with an integrated workspace principally used by the resident.
Loading space. Space for bulk pickups and deliveries, scaled to delivery vehicles expected to be used and accessible to such vehicles when required parking spaces are filled.
Lot or zoning lot: For purposes of this appendix, a lot or zoning lot is a clearly defined parcel of land established by plat, subdivision, or as otherwise permitted by law, fronting on a public street, and having sufficient area and dimensions to meet minimum zoning district requirements for area, frontage, use, and coverage, and to provide such yards and other open space as required by the respective zoning district regulations. In this appendix, the terms "lot" and "zoning lot" have the same meaning and may be used interchangeably. A lot may consist of combinations of contiguous lots of record or portions of lots so recorded, provided that in no case of subdivision or combination shall any residual lot, portion of lot, or parcel be created which does not meet the requirements of this appendix. Lots include "corner lots," "interior lots," and "through lots."
Lot, corner: A lot located at the intersection of two or more streets. (See Figure 11-8.)
Lot, interior: A lot with only one frontage on a street. (See Figure 11-8.)
Lot, through: A lot which has frontages on two nonintersecting streets. Through lots may be referred to as double frontage lots. (See Figure 11-8.)
Figure 11-8. Lot Types and Frontage
Lot of record: A lot which existence, location, and dimensions have been legally recorded or registered in a deed or on a plat in the clerk's office of the circuit court.
Lot area: The total square footage or acreage of land within the front, rear, and side lot lines of a lot.
Lot area, minimum: The smallest lot on which a particular use or structure may be located in a particular district.
Lot area per dwelling unit: That amount of lot area required, by the applicable provisions of this appendix, for each dwelling unit located on a lot.
Lot coverage: That portion of a lot, which when viewed from directly above, would be covered by any building or structure, parking and loading areas and other surface which is impermeable or substantially impervious to storm water. Gravel parking areas shall be considered impervious. For the purposes of this definition, lot shall include contiguous lots of the same ownership within a single zoning district which are to be used, developed, or built upon as a unit.
Lot front: The side of a lot which abuts a public street. For corner lots, the shortest side fronting upon a street shall be considered the lot front.
Lot frontage: The horizontal linear dimension between the side lot lines measured from the points where the side lot lines intersect a street right-of-way. (See Figure 11-8.) All sides of a lot that abut a street shall be considered frontage. On curvilinear streets, the arc between the side lot lines shall be considered the lot frontage.
Lot line: The lines bounding a lot.
Lot line, front: In the case of an interior lot abutting upon only one street, the line which separates the lot from such street. (See Figure 11-9.) In the case of a corner lot, the line separating such lot from the street upon which the lot has the least dimension shall be considered the front lot line. (See Figure 11-10.)
Lot line, rear: That lot line which is parallel to and most distant from the front lot line of the lot; provided, however, that in the case of an irregular or triangular lot which has no lot line which is approximately parallel to the front lot line, a line ten feet in length entirely within the lot, parallel to, and at the maximum possible distance from the front lot line shall be considered to be the rear lot line. (See Figures 11-9, 11-10 and 11-11.)
Lot line, side: Any lot line other than a front or rear lot line. (See Figures 11-9 and 11-10.)
Figure 11-9. Lot Lines—Interior Lot
Figure 11-10. Lot Lines—Corner Lot
Figure 11-11. Rear Lot Line—Irregular or Triangular Lot
Lot width: The horizontal distance between side lot lines measured parallel to the abutting street right-of-way at the required building setback line. (See Figure 11-12.)
Figure 11-12. Lot Width
Manufactured home: See "Dwelling, manufactured home."
Manufacturing: The processing or converting of natural, raw, secondary, partially completed materials, or finished materials or products, or any of these, into an article or substance of different character, or for use for a different purpose. Manufacturing includes processing, compounding, assembly, packaging, treatment, or fabrication, of goods. Products may be finished or semi-finished and are generally made for the wholesale market, for transfer to other plants, or to order for firms or consumers. Accessory uses may include offices, cafeterias, warehouses, storage yards, repair facilities, and truck fleets.
Manufacturing: Stone and cut stone products. A manufacturing establishment primarily engaged in cutting, shaping, and finishing marble, granite, slate, and other stone for building and miscellaneous uses. This use type also includes monument and stone works engaged in the manufacturing of headstones, footstones, markers, statues, obelisks, cornerstones, and ledges for placement on graves.
Manufacturing: Structural clay products. A manufacturing establishment primarily producing structural clay products, including brick, pipe, china plumbing fixtures, and vitreous china articles, fine earthenware and porcelain electrical supplies and parts.
Manufacturing: Wood products: A facility where logs or partially processed cants are sawn, split, shaved, stripped, chipped, or otherwise processed to produce wood products. This manufacturing and processing use type includes lumber mills, sawmills, planning mills, lath mills, and plywood and veneer mills engaged in producing lumber and basic wood products, together with the wholesale and retail sale of such products and establishments engaged in manufacturing finished articles made entirely or mainly of wood or wood substitutes. Also included in this use type are truss and structural beam assembly; wood containers, pallets and skids; wood preserving; particle board assembly; and turning and shaping wood and wood products on a manufacturing basis.
Mechanical or electrical equipment: Heating, ventilating, air conditioning, or power generation equipment.
Medical office. See "Office, medical."
Meeting hall: See "Assembly hall."
Mini-warehouse: An enclosed storage facility providing independent, individual, fully enclosed storage space, in a controlled access, for lease to individuals for long-term storage of their household goods or personal property, where each storage area is enclosed by walls and ceiling and has a separate entrance for storing or removing stored goods. Packaging stores and the rental of trucks, trailers, or equipment is not deemed to be customarily accessory to a mini-warehouse.
Mixed use building: A single building containing more than one type of land use permitted within a zoning district, including residential, commercial, and office, or a mix of residential.
Modular building: Building comprised of one or more sections that are intended to become real property, primarily constructed at a location other than the permanent site, built to comply with the Virginia Industrialized Building Safety Law (Code of Virginia, § 36-70 et seq., as amended) as regulated by the Virginia Department of Housing and Community Development, and shipped with most permanent components in place to the building site for final assembly on a permanent foundation. For purposes of this appendix, a modular building shall not include any manufactured building subject to and certified under the provisions of the National Manufactured Housing Construction and Safety Standards Act of 1974 (42 U.S.C. § 5401 et seq.).
Monument sales, retail: An establishment primarily engaged in the retail sale of monuments, such as headstones, footstones, markers, statues, obelisks, cornerstones, and ledges, for placement on graves.
Motor vehicle: Any vehicle which is self-propelled or designed for self-propulsion. Any device designed, used, or maintained primarily to be loaded on or affixed to a motor vehicle to provide a mobile dwelling, a sleeping place, storage, or office or commercial space shall be considered a part of a motor vehicle.
Motor vehicle rental/leasing: An establishment engaged exclusively in the rental of automobiles, sport utility vehicles, light trucks, vans, or motorcycles, including incidental parking and servicing of vehicles for rent or lease. Typical uses include automobile rental agencies and taxicab dispatch areas. Excluded from this use type are "Motor vehicle rental, self-moving" and "Equipment sales/rental."
Motor vehicle rental, self-moving: An establishment engaged exclusively in the rental of trucks, vans, and trailers for moving household personal property, and which establishment may engage in the rental of other moving accessories, such as trailer hitches and mounts, padded blankets, and dollies, and the sale of boxes and other packing materials. Motor vehicle rental is limited to those vehicles normally associated with the self-moving of household personal property, such as light-duty vans, trucks generally ranging in size from ten feet to 26 feet, cargo trailers generally ranging in size from four feet by eight feet to six feet by 12 feet, utility trailers generally ranging in size from four feet by seven feet to six feet by 12 feet, and auto trailers. This use type does not include "Motor vehicle rental/leasing," "Mini-warehouse," or any use which is otherwise specifically listed in the use tables in article 4 of this appendix.
Motor vehicle repair services, major: The general repair, rebuilding, or reconditioning of engines, suspensions, brake systems, motor vehicles, or trailers, including body work, welding and major painting service, or the repair of construction equipment, commercial trucks, agricultural implements and similar heavy equipment. Typical uses include automobile and truck repair garages, transmission shops, radiator shops, body and fender shops, equipment service centers, machine shops, welding shops, and other similar uses where major repair activities are conducted. For purposes of this definition, "body work" is the repair, replacement, straightening, or restoration of the body or frame of a motor vehicle, including collision repairs.
Motor vehicle repair services, minor: The replacement or repair of any motor vehicle part that does not require the removal of the engine head or pan, engine transmission, or differential and suspension parts, but may include incidental body and fender work, minor painting, and upholstering service. Such use may include the incidental towing of vehicles to the lot expressly for the purposes of scheduled repair by the motor vehicle repair services establishment. This use type does not include the storage of wrecked or abandoned vehicles. Typical uses include oil and lubrication services, tire sales and installation, replacement of batteries and similar repair and services activities where minor repairs and routine maintenance are conducted, motor vehicle upholstery repair or replacement, and motor vehicle radio or stereo system installation or service. For purposes of this appendix, "Motor vehicle repair services, minor" does not include "Car wash," "Equipment sales/rental," "Motor vehicle repair services, major," or any use otherwise specifically listed in the use tables in article 4 of this appendix.
Multifamily dwelling: See "Dwelling, multifamily."
Non-conforming lot: A lawful lot of record existing on the effective date of the zoning regulations applicable to the district in which the lot is located, that does not comply with the minimum applicable size or other lot requirements of that district.
Non-conforming structure: A lawful structure existing on the effective date of the zoning regulations applicable to the district in which the structure is located, that does not comply with the minimum applicable bulk, height, setback, floor area or other dimensional requirements applicable to structures within that zoning district.
Non-conforming use: A lawful principal use of a lot, existing on the effective date of the zoning regulations applicable to the district in which the use is located, or a more restricted use, that does not comply with applicable use regulations of that district.
Office, general:
(1)
An establishment primarily engaged in providing administrative, clerical, and other services not involving the manufacture, assembly, storage, display, or direct retail sale of goods, and not including medical services or "Government administrative services." Typical uses include real estate, insurance, management, tax preparation, call centers, data processing, computer software development, travel or other business offices, and organization and association offices; or
(2)
An establishment primarily engaged in the conduct of professional business by professional persons as defined herein but not including medical services. For purposes of this definition, a professional person is a person who practices an occupation in which some department of science or learning is applied to affairs of others, either advising or guiding them, or otherwise serving their interests or welfare in the practice of an art founded on such knowledge. The word professional implies attainments in knowledge as distinguished from mere skill and the application of such knowledge to serve others. Professional person may include an attorney, accountant, professional engineer, architect, surveyor, financial planner, landscape architect, or planner, but shall not include medical- or healthcare-related practitioners licensed by the Commonwealth of Virginia.
For purposes of this appendix, contractors who perform services off-site are included in this use type if equipment and materials are not stored at the site and fabrication or similar work is not carried on at the site.
Office, medical: An establishment in which doctors, dentists, or similar practitioners licensed by the Commonwealth of Virginia provide health care services to clients, including medical or health-related physical or massage therapy, counseling, diagnoses, treatment, and minor surgical care on a routine basis and exclusively on an outpatient basis. Emergency treatment is not the dominant type of care provided at this facility. Excluded from this use type are "Clinics," "Outpatient mental health and substance abuse clinics," "Hospital," and any use which is otherwise specifically listed in the use tables in article 4 of this appendix.
Off-site: Outside the limits of the areas encompassed by the lot or parcel of record on which the activity is conducted.
On-site: Within the limits of the area encompassed by the lot or parcel of record on which the activity is conducted.
Off-street parking: Space provided for the parking of motor vehicles outside the street right-of-way.
Open space, usable: Open space within or directly related to a multifamily or townhouse residential development or a group care facility which is designed and intended for the common use and enjoyment of the residents of the development or facility, or employees of such development or facility. Such common open space is land not covered by parking, driveways, buildings, or storm water management facilities, except that it may contain and include structures of a recreational nature (such as picnic shelters, gazebos, swimming pools, tennis courts, basketball courts, and similar facilities). "Usable open space" shall consist of open areas of such a size that the smallest dimension is not less than 15 feet and is of such configuration to allow for the conduct of outdoor activities. Yards required by this appendix, which meet the foregoing dimensions, may be included in the allocation and calculation of usable open space. Other open or landscaped areas with a dimension of less than 15 feet in any direction shall not be credited to the usable open space requirement for the development.
Outdoor storage: The keeping or storing, other than in a wholly enclosed building, of any goods, items, materials, equipment, personal property, or merchandise. "Outdoor storage" shall be permitted only as an accessory use where specifically allowed by this appendix. The term "outdoor storage" shall generally be considered to be anything that is not normally found in residential yards and on porches, or around business premises, and may include, without limitation, construction materials, motor vehicle parts, appliances, unused indoor-type furniture, and the clutter of various personal items or stacks of containers in plain view. In residential zoning districts, construction and landscaping materials currently being used on the premises within a period of one year, neatly stacked firewood in the rear or side yard for the purpose of consumption only by the person(s) residing on the premises, equipment regularly used for lawn maintenance, outdoor furniture, children's toys, and bicycles shall generally not be considered outdoor storage; however, an excess of those items, or equipment in disrepair, shall be considered outdoor storage. For purposes of this definition, motor vehicle inventory for sale or lease, motor vehicle rental inventory, motor vehicle and commercial motor vehicle fleets associated with a business establishment, and the sale inventory of a nursery or commercial greenhouse shall not be considered "outdoor storage."
Outpatient mental health and substance abuse clinic: An establishment which provides outpatient services primarily related to the treatment of mental health disorders, alcohol, or other drug or substance abuse disorders, which services include the dispensing and administering of controlled substances and pharmaceutical products by professional medical practitioners as licensed by the Commonwealth of Virginia.
Overlay district: A zoning district established by this appendix to prescribe special regulations to be applied to a lot in combination with, and supplemental to, the underlying base district.
Paint ball facility: An establishment engaged in the provision of a field or facility designated for the use of pneumatic paintball guns for recreational use. A pneumatic paintball gun means a paintball gun that expels by action of pneumatic pressure plastic balls filled with paint for the purpose of marking the point of impact.
Parking area: An area provided for vehicular parking outside the dedicated street right-of-way, that provides one or more parking spaces together with drive aisles, ingress and egress lanes, and similar features.
Parking lot: A surface parking area for motor vehicles where there is no gross building area below the parking area and no gross building area or roof above it, and which provides one or more parking spaces together with driveways, aisles, turning and maneuvering areas, incorporated landscaped areas, and similar features meeting the requirements established by this appendix. For the purposes of this definition, a "parking lot" includes a "Parking lot facility" and a parking lot which is accessory to a permitted principal use
Parking lot facility: An off-street, surfaced, ground level area where motor vehicles are stored for hourly, daily, or overnight parking as the permitted principal use of the property. A "parking lot facility" does not include any on-site or off-site parking accessory to a permitted principal use.
Parking, off-site: Off-street parking which is located on a separate lot from the lot containing the use which the parking is intended to serve.
Parking space, off-street: A space on premises rather than on the street adequate in size for the parking of one motor vehicle with room for opening doors on both sides and having a permanent means of access to a street right-of-way. For purposes of this definition, motor vehicle inventory for sale or lease, motor vehicle rental inventory, or motor vehicle and commercial motor vehicle fleets associated with a business establishment shall not be considered an "off-street parking space."
Personal improvement services: Establishments primarily engaged in the training and development of a person through the provision of informational, instructional, personal improvements, and similar services. Typical uses include driving schools, wellness centers, reducing salons, dance or martial arts studios, art or music lessons, and handicraft and hobby instruction. This use type does not include "Personal services" or any use which is otherwise specifically listed in the use tables in article 4 of this appendix. For purposes of this definition, a "wellness center" is an establishment containing customized health services that may include fitness, personal training and nutrition consulting, incorporating an individualized nutritional and fitness program with specific goals, and where clients are generally under the supervision of licensed staff which include nutritionists and personal trainers.
Personal services: An establishment primarily engaged in the provision of frequently or recurrently needed individual services generally related to personal needs, such as the care of a person or a person's apparel. Typical uses include beauty or barber shops, nail salons, day spas, tanning salons, "laundromats," dry cleaning stations serving individuals and households, tailors or seamstresses, acupuncturists, "body piercing establishments," "tattoo parlors," shoe repair shops, and the like, but not including medical services, "Personal improvement services," or any use which is otherwise specifically listed in the use tables in article 4 of this appendix.
Pet grooming: An establishment where, for a fee, domesticated animals are bathed, clipped, or combed or brushed for the purpose of enhancing their aesthetic value or health, and where all such activity occurs wholly enclosed in a building. For purposes of this definition, "domesticated animals" shall include dogs and cats only.
Petition: The completed form(s), with all documents, exhibits, and fees required of a petitioner for an appeal to the town council or circuit court as provided for in this appendix.
Petitioner: The party filing a petition of appeal to the town council or circuit court as provided for in this appendix.
Planning commission: The planning commission of the Town of Clifton Forge, Virginia.
Portable storage container: A portable, weather-resistant receptacle designed and used for the storage or shipment of items, including, but not limited to, household goods, furniture, wares, building materials, equipment, or merchandise. The term shall not include dumpsters or refuse containers.
Printing/publishing facility: An establishment which engages in the professional printing and reproduction of publications, including newspapers, magazines or other periodicals, and books.
Principal structure: A structure in which the primary use of the lot on which the structure is located is conducted.
Principal use: The main use of land or structures as distinguished from a secondary or accessory use.
Public facilities: A use conducted by, or a facility or structure owned or managed by, the government of the United States, the Commonwealth of Virginia, Alleghany County, or the Town of Clifton Forge that provides a governmental function, activity, or service for public benefit.
Public maintenance and service facility: A public or public utility facility supporting maintenance, repair, motor vehicle or equipment servicing, material storage, and similar activities associated with the provision of public and utility services, including street or sewer storage yards, equipment service centers, and similar uses having characteristics of commercial services or contracting or industrial activities.
Public park or recreational area: Publicly owned and operated park, picnic area, playground, indoor/outdoor athletic or recreation facility, indoor/outdoor shelter, and other similar uses. This use type does not include "Public recreation assembly." For purposes of this definition, "park" is predominantly open space, used primarily for active or passive recreation, not used for a profit-making purpose, and generally relies on a natural or man-made resource base and is developed with few structures and a low intensity of impact on the land. Typical uses and activities include trail systems, trail fitness areas, picnic areas, fishing, indoor/outdoor shelters, open space, playgrounds equipped with swings, gym bars, basketball courts and similar equipment, and other similar uses.
Public recreation assembly: Publicly owned and operated community centers, athletic fields, and year-round swimming facilities. For purposes of this definition:
(1)
"Community center" is a place, structure, area, or other facility used as a place for meetings, recreation, or social activity, which is publicly owned and not operated for profit. Such facility is generally open to the public and designed to accommodate and serve significant segments of the community.
(2)
"Athletic field" is an outdoor site, often requiring equipment, designed for organized athletic competition in field sports such as softball, baseball, soccer, and football. Athletic fields may include bleachers, but do not provide locker rooms.
This use type does not include a "sports stadium, arena, or coliseum" which shall be defined as a large open or enclosed space specifically designed as a place of public assembly for viewing sporting events or other special entertainment events, including concerts, and where such field or court is partly or completely surrounded by tiers of seats for spectators.
Public safety services: Facilities for the conduct of public safety and emergency response services, often located in or near the area where the service is provided. Employees are regularly present on-site. Accessory uses include offices and parking. This use type includes fire stations, police stations, and emergency medical and ambulance stations.
Public water and sewer: A water or sewer system owned or operated by the Town of Clifton Forge or Alleghany County, or owned and operated by a private individual or a corporation approved by the town council and properly licensed by the state corporation commission.
Recreational vehicle: A vehicle towed or self-propelled on its own chassis, or attached to the chassis of another vehicle, and designed or used for temporary living accommodations for recreational, camping, travel, or seasonal use only. Recreational vehicles shall include, but not be limited to, travel trailers, truck campers, camping trailers, motor coach homes, tent trailers, converted trucks and buses, boats, boat trailers, and utility trailers or similar devices for temporary mobile housing.
Recreational vehicle sales and service: The display and retail sales of recreational vehicles as defined herein, including the sale, installation, and servicing of parts and related accessories.
Recycling drop-off station: An accessory use, structure, or movable container, designed and used for the depositing and temporary accumulation of the following:
(1)
Recyclable discarded materials, such as paper, cardboard, glass, metal, or plastic, which are subsequently transported to a recycling collection facility for further processing; or
(2)
Donated goods, such as clothing, furnishings, or other personal or household items, prior to delivery to a broker or user of such materials.
Such use, structure, or movable container is intended for household or consumer use and does not include use by commercial or industrial establishments or the permanent storage or processing of such items. This use type does not include "Recycling collection facility."
Recycling collection facility: A permanent facility designed and used for collecting, purchasing, storing, and re-distributing pre-sorted, recyclable materials that are not intended for disposal, such as paper, newspaper, or used food or beverage containers. A recycling collection facility shall be used for limited processing of recyclable materials, such as can and glass crushing and sorting. This use type does not include "Recycling drop-off station," "Wrecker yard," or a recycling and salvage operation which engages in the storage, sale, dismantling or other processing or compaction of scrap or discarded materials.
Religious assembly: Any structure principally used as an assembly place for regularly organized religious worship and related incidental activities. Typical uses include churches, synagogues, temples, mosques, and similar buildings, and including accessory uses customarily associated with the primary purpose, such as parish houses, religious education buildings, convents, columbaria, cemeteries located on the same lot, bookstores inside the church building, and child care on the premises during worship services. "Educational facilities, primary/secondary," "Day care center, adult," "Day care center, child," "Community food operation," and "Supply pantry" are not considered customary accessory uses for purposes of this definition.
Research and development: An establishment primarily engaged in research, or research and development, of innovative ideas in technology-intensive fields. Typical uses include the research and development of communication systems, transportation, geographic information systems, and multi-media and video technology. The development and construction of prototypes may be associated with this use type.
Resident security or manager apartment: A single dwelling unit located entirely within the structure of a principal permitted use where such dwelling unit is accessory and subordinate to the principal permitted use and which is designated for use only by the resident manager or resident security personnel of such principal permitted use. Such dwelling unit shall not be sold, leased, or rented for other purposes.
Resource conservation facility: Fish ponds; game preserves, botanical gardens; water reservoirs; or wildlife rescue shelter or refuge area. For purposes of this definition, a "wildlife rescue shelter or refuge area" is a facility or area maintained for the welfare, protection, and preservation of wildlife species.
Restaurant: An establishment primarily engaged in the preparation and sale of food and beverage to the customer in a ready-to-consume state for take-out, delivery, or table service. Such meals or other prepared foods are generally prepared on the premises and are regularly sold. A restaurant may include the licensed on-premises sale, service and consumption of beer, wine or other alcoholic beverages as an accessory use. Such establishment may provide entertainment for restaurant patrons, which entertainment is clearly incidental to the restaurant's primary function, such as the playing of the piano, other non-amplified music, or a dance floor not exceeding ten percent of the seating area of the establishment. A "drive-through facility" is not considered a customary accessory use for purposes of this definition. This use type includes, without limitation, cafeterias, brewpubs, coffee shops, cafes, sandwich shops, ice cream parlors, fast food restaurants at which patrons order and receive food orders at a counter or window for consumption on or off the premises, and full-service restaurants at which patrons are seated at tables or booths and where food orders are taken at and delivered to such tables or booths by wait staff. Excluded from this use type are "Entertainment establishments," "Bakeries," catering establishments, concession stands, and any use which is otherwise specifically listed in the use tables in article 4 of this appendix.
Retail sales, general: An establishment engaged in the sale or rental of commonly used goods and merchandise directly to the consumer for personal or household use, and including the incidental service of such merchandise. This use type includes:
(1)
Bicycle, florist, gift or novelty, antique, pawn, and pet shops;
(2)
Art supplies, camera and photographic supplies, clothing, convenience, grocery, computer and software, electronics, fabric, jewelry, music (recordings), musical instruments, paint or wallpaper, picture framing, photo finishing services and supplies, shoe, sporting goods, stationery, toy, hobby, and video stores;
(3)
Art galleries, bookstores, costume rental, news dealers or newsstands, optical retail sales, and pharmacies;
(4)
Department and other variety stores, and specialty shops offering for sale items related to a specific theme such as kitchen wares; and
(5)
Similar retail establishments.
Excluded from this use type are "Automotive parts/supply, retail," "Gasoline stations," "Automobile dealerships," "Equipment sales/rental," "Restaurant," "Bakery," manufactured home sales, fuel distribution, or any use which is otherwise specifically listed in the use tables in article 4 of this appendix. For purposes of this definition, "fuel distribution" means a retail trade establishment engaged, as a principal use, in the sale to consumers of fuel oil, butane, propane and liquefied petroleum gas (LPG), bottled or in bulk, for heating or cooking, including sales, installation of tanks, and delivery to households and businesses.
Retail sales, large furnishings: A retail sales establishment primarily characterized by large showrooms and floor samples, and where the retail sale is generally followed by delivery to the home, and which may include installation of the purchased item. Such establishments include stores primarily engaged in the retail sale of large appliances such as refrigerators, ovens, washers, and dryers; furniture stores; mattress stores; stores primarily engaged in the retail sale of household fixtures such as bathroom fixtures, carpeting or other floor coverings, or lighting; and the retail sale of swimming pools, hot tubs, or spas. This use type does not include any use which is otherwise specifically listed in the use tables in article 4 of this appendix.
Retaining wall: A wall or terraced combination of walls designed to retain or restrain lateral forces of soil, such soil being similar in height to the height of the wall, and where such retaining wall is of a height no greater than that necessary to serve such stated purpose and is not used to support, provide a foundation for, or provide a wall for a building or other structure.
Satellite dish antenna: An antenna in the shape of a shallow dish, and appurtenant equipment, used for the direct reception of broadcast signals from orbiting satellites.
Satellite dish antenna, height: See "Height of structure."
Satellite earth station: Any device or antenna, including associated mounting devices or antenna-supporting structures, used to transmit or receive signals from an orbiting satellite, including television broadcast signals, direct broadcast satellite services, multi-channel multipoint distribution services, fixed wireless communications signals, and any designated operations indicated in the FCC Table of Allocations for satellite services.
School for the arts: A school where classes in the various fine arts, including painting, sculpting, photography, music, dance, or dramatics are taught, and where such establishment is not otherwise defined as "Educational facilities, primary/secondary," "Educational facilities, college/university," "Studio, fine arts," "Personal improvement services," or "Home occupation."
Screening: A method of visually obscuring one abutting or nearby structure or use from another by the use of fencing, walls, or densely planted vegetation. Screening is intended to substantially but not necessarily totally obscure visual impacts and mitigate noise impacts between adjoining uses, structures, or facilities.
Secretary of the Interior's Standards for Rehabilitation: The Secretary of the Interior's Standards for Rehabilitation, as codified in 36 CFR 67 (U.S. Department of Interior regulations), and Secretary of the Interior's Standards for the Treatment of Historic Properties with Guidelines for Preserving, Rehabilitating, Restoring, and Reconstructing Historic Buildings (Washington, D.C.: U.S. Department of the Interior, National Park Service, Cultural Resource Stewardship and Partnerships, Heritage Preservation Services, 1995), as amended.
Setback: The distance from a property line to the closet projection of a structure or from the closest projection of one structure to the closest projection of another structure.
Sight distance triangle: As defined and set forth in section 2-9 of this appendix. For purposes of this definition, "sight distance" shall mean the distance visible to a driver from his position to other objects or vehicles, when at a point of turning or when stopping a vehicle.
Sign: Any object, device, structure, or fixture, or portion thereof, which is used to announce, advertise, identify, display, or direct or attract attention to an object, person, institution, organization, business, product, goods, service, special promotion, activity, event, or location. The means used to direct or attract attention include, without limitation, objects, devices, fixtures, words, letters, numerals, graphics, figures, emblems, designs, illustration, decoration, symbols, logos, trademarks, colors, or projected illumination or images. For purposes of this appendix, a "sign" does not include "holiday decorations," which shall be defined as decorative elements of a temporary nature intended for the acknowledgement of a holiday or holiday season which contain no commercial messages which advertise or promote a product, service, or business. For definitions associated with signs, see section 7-39 of this appendix.
Single-family dwelling, detached: See "Dwelling, single-family, detached."
Site plan: The drafted proposal for a development, including site plans, maps, and other documentation delineating all easements and other conditions relating to use, location, and bulk of buildings, density of development, parking arrangements, public access, common open space, landscaping, public facilities, and other such information necessary to determine compliance with this appendix.
Sports and recreation, indoor, commercial: The provision of recreation facilities which are predominantly participatory uses, and which are conducted entirely within an enclosed building. Typical uses include tennis or other racquet courts, swimming pools, health and fitness centers, bowling alleys, ice or roller skating rinks, batting cages, paint ball facilities, climbing walls, or similar recreation uses. "Commercial indoor sports and recreation" facilities may include accessory uses, such as snack bars, pro shops, and locker rooms, which are designed and intended primarily for the use of patrons of the principal recreational use. Excluded from this use type are "Gun-firing ranges" or any use which is otherwise specifically listed in the use tables in article 4 of this appendix.
Sports and recreation, outdoor, commercial: The provision of recreation facilities which are predominantly participatory uses, and which are conducted in open or partially enclosed or screened facilities. Typical uses include health and fitness centers, swimming pools, tennis or other outdoor racquet courts, basketball courts, driving ranges, miniature golf, skateboarding courses, batting cages, or similar recreation uses. "Commercial outdoor sports and recreation" facilities may include any accessory uses, such as snack bars, pro shops and clubhouses, which are designed and intended primarily for the use of patrons of the principal recreational use. Excluded from this use type are motorized cart or motorcycle tracks, raceways, drag strips, overnight camping, "Gun-firing ranges," "Paint ball facilities," or any use which is otherwise specifically listed in the use tables in article 4 of this appendix.
Stable, commercial: The boarding, breeding, or raising of horses or ponies not owned by the owner or occupant of the property or the riding of horses or ponies by other than the owner or occupant of the property and their nonpaying guests. Included in this use type are riding academies where instruction in riding, jumping, and showing of horses is offered, and where horses may be hired for riding.
Stockade fence: A fence constructed of vertical wood or vinyl strips, with no intervening spaces, providing a complete visual barrier.
Storefront: That portion of the ground floor of a non-residential building consisting of an entryway and windows, and that is leased to or occupied by an individual tenant, business, or other entity.
Story: That portion of a building, other than a basement, included between the surface of any floor and the surface of the next floor above it, or if there is no floor above it, the space between the floor and the ceiling above the floor of such story.
Street: Any public way permanently open to common and general use for vehicular and pedestrian traffic which provides the primary means of access to abutting lots.
Street line: The dividing line between a street right-of-way and abutting property.
Structure: Anything which is constructed or erected with a fixed location on the ground, or attached to something having a fixed location on the ground, including but not limited to buildings, walls, fences, signs, manufactured homes, and swimming pools (in-ground and above-ground).
Studio, fine arts: An establishment for preparation, display, and sale of individually crafted artwork, jewelry, painting, sculpture, pottery, art photography, leather craft, hand-woven articles, candles, hand-blown glass, and similar items. Such space is primarily a working studio where such artist, artisan, or craftsperson may display and sell work, but such establishment may also include the teaching of classes in the applicable fine art or craft, including the arts associated with vocal or instrumental music, acting, and writing.
Supply pantry: An establishment engaged in the provision or sale of food, clothing, or other essential items at no charge or for less than fair market value where no on-premises consumption of the items being distributed occurs. Such establishments may commonly be referred to as food banks, thrift stores, or clothes banks.
Tattoo parlor: An establishment which offers or practices the placement of designs, letters, scrolls, figures, symbols, or any other kind of marks upon or under the skin of a person with ink or any other substance, resulting in permanent coloration or marking of the skin, by the aid of needles or other instruments designed to touch or puncture the skin, except when performed by a medical doctor or other medical services personnel licensed pursuant to Code of Virginia, title 54.1, as amended, in the performance of his professional duties. A tattoo parlor is classified as a "Personal services establishment."
Telecommunications facility: Any unstaffed facility used for the transmission or reception of radio, television, radar, cellular telephone, personal paging device, specialized mobile radio (SMR), and similar services. Where reference is made to a telecommunications facility, unless otherwise specified or indicated by context, such reference will be deemed to include the antenna or group of antennas, transmission lines, ancillary appurtenances, support structure on which the antenna or other communications equipment is mounted, transmission cables, and any associated equipment shelter. Excluded from this use type are "Amateur radio tower" and "Telecommunications facility, stealth."
Telecommunications facility, stealth: A telecommunications facility that is hidden or not readily detectable by means of camouflage or concealment. "Camouflage" shall mean a way of painting and mounting a telecommunications facility that requires minimal changes to the host structure in order to accommodate the facility. "Concealment" shall mean to enclose a telecommunications facility within an existing structure or appurtenance of a structure resulting in the facility being either invisible or made part of the feature enclosing it. Such structures or appurtenances may include church steeples, bell towers, church spires, clock towers, cupolas, light standards, chimneys, utility poles, and flagpoles displaying flags. For the purposes of the regulations of this appendix, "stealth telecommunications facilities" shall include the use of existing structures or appurtenances of structures in which the facility is concealed by embedding all antennae within the structure or appurtenance, antennas mounted to a water storage tank and not extending more than ten feet above the highest horizontal plane of the tank, and a single antenna array attached to a telecommunications pole constructed and integrated within an existing electric transmission tower in which the height of the pole and antenna array does not exceed ten feet above the existing electric transmission tower.
Telecommunications tower: A vertical projection, including a foundation, designed and primarily used to support one or more antennas or which constitutes an antenna itself, which is commonly referred to as "tower," "cell tower," "communications tower," "telecommunications tower," or "broadcasting tower." Telecommunications towers do not include "stealth telecommunications facilities," but do include roof-mounted and surface-mounted antennas that extend above the roofline. Telecommunications towers are not considered utility equipment.
Temporary family health care structure: A transportable residential structure, providing an environment facilitating a caregiver's provision of care for a mentally or physically impaired person, where such structure is accessory to a single-family detached dwelling and where such structure is primarily assembled at a location other than the site of installation.
Theater, movie or performing arts: A building, or portion of a building, open to the public, which is used primarily for the commercial showing of motion pictures, or for dramatic, operatic, dance, musical or other live performances. Such use may include concessions as an accessory use. Typical uses include motion picture theaters, performing arts theatres, and concert or music halls.
Tourist home: A dwelling in which "guest rooms" are offered or provided to transient guests for compensation, for no more than 14 persons. A "tourist home" does not include "Bed and breakfast," "Boarding house," "Hotel/motel," "Group care facility," "Home occupation," "Accessory use," or any use which is otherwise specifically listed in the use tables in article 4 of this appendix.
Towing service: An establishment engaged primarily in the towing of vehicles or equipment from one location to another, with no sales or repair activity occurring on the lot.
Town: The Town of Clifton Forge, Virginia.
Townhouse. See "Dwelling, townhouse."
Trailer: Any vehicle without motive power designed for carrying property wholly on its own structure and for being drawn by a motor vehicle.
Transportation terminal: A facility for the loading, unloading, and interchange of passengers, baggage, and incidental freight or package express between modes of ground transportation, including bus terminals, railroad stations, and public transit facilities. This use type does not include "Truck terminal."
Travel trailer: See "Recreational vehicle."
Truck terminal: A facility for the receipt, transfer, short-term storage, and dispatching of goods transported by truck. Loading and unloading is carried on regularly, and minor maintenance of the truck fleet is performed. Included in this use type are mail or package distribution facilities, including those operated by the U.S. Postal Service, as well as motor freight companies regulated by the public utility commission or the interstate commerce commission.
Two-family dwelling: See "Dwelling, two-family."
Use: The specific purpose for which land, water, or a structure is designed, arranged, intended, or for which it is or may be occupied or maintained.
Utility: Any person, firm, corporation, municipal agency, or authority duly authorized to furnish to the public, under regulation, electricity, gas, storm water drains, water, sewerage collection and treatment, steam, cable television, or telephone.
Utility distribution or collection, basic: Linear utility features for distribution of utility service to the customer, including electric power lines, water lines, ground water wells, sewer lines, telephone lines, cable television lines, and natural gas lines, and other distribution linear features including transformers and relay and booster devices.
Utility distribution or collection, transitional: Linear utility features for the compression, "step-down of voltage," switching, storage, or other similar function of a utility service that is necessary for distribution of the utility service directly to the customer, including electric or gas compressor substations, water or sewer pump or lift stations, and storage facilities such as water storage tanks.
Variance: A reasonable deviation from the provisions of this appendix regulating the size or area of a lot or parcel of land, or the size, area, bulk, or location of a building or structure, when the strict application of the provisions would result in unnecessary or unreasonable hardship to the property owner, and such need for a variance would not be shared generally by other properties, and provided such variance is not contrary to the intended spirit and purpose of the ordinance, and would result in substantial justice being done. It shall not include a change in use which change shall be accomplished by a rezoning or by a conditional zoning.
Veterinary hospital/clinic: An establishment rendering care, observation, or treatment of domestic animals, including household pets, and which may include medical or surgical treatment and care. The boarding of animals shall be limited to indoors and only on a short-term basis, and shall be necessitated by and directly related to surgery or medical treatment, unless also authorized and approved as a "Kennel." References within this appendix to "outdoor pens or runs" shall mean any outdoor areas and facilities in which animals are exercised, groomed or otherwise cared for.
Warehousing and distribution: An establishment primarily engaged in the storage, warehousing, and dispatching of goods within enclosed structures, or outdoors where permitted. Generally the storage and inventory of goods, materials, or equipment is for manufacturing use, for distribution to wholesalers or retailers, or for inventory ultimately to be distributed directly to the consumer. Accessory uses may include offices, truck fleet parking and maintenance areas, and sorting or repackaging of goods. Typical uses include wholesale distributors, storage warehouses for retail stores, cold storage plants, bus barns, and moving/transfer/storage firms. Excluded from this use type are "Mini-warehouses," the transfer or storage of solid or liquid wastes, the bulk storage of materials which are flammable or explosive or which create hazardous conditions, motor vehicle sales, and "Equipment sales/rental."
Whip antenna: See "Antenna."
Workshop: An establishment primarily engaged in the on-site production of goods by hand manufacturing, hand-crafting such products or piecing together to form a finished product, within a wholly enclosed building, involving the use of hand tools or the use of mechanical equipment commonly associated with residential or commercial uses, or a single kiln. Such hand manufacturing activities may include pottery, assembly of electronics, jewelry-making, or similar activities, and may include the on-site retail sale of goods produced on the premises.
Wrecker yard: Any area or lot, or portions of a lot, which activities include the recovery, removal, and storage of inoperative or damaged motor vehicles or trailers for dismantling, demolition, salvage, or sale of such inoperative or damaged motor vehicles or trailers, or part of such motor vehicles or trailers. For purposes of this definition, "inoperative motor vehicle" shall mean any motor vehicle on which valid license plates or a valid inspection decal is not displayed, or any motor vehicle which has been wrecked, partially or totally dismantled, or disassembled, such that the vehicle cannot be lawfully operated on a public street.
Yard: An open space on a lot, which space is unoccupied and unobstructed from 30 inches above the graded ground level to the sky, except as otherwise provided in this appendix. The term "required yard" where used in this appendix refers to the minimum depth required by the regulations of a particular zoning district to be unoccupied and unobstructed as herein defined, extending from and along the adjacent property line. This is sometimes referred to as "setback," "required setback," and "building setback line."
Yard, front: A yard extending between side lot lines across the front of a lot, the depth of which is the horizontal distance between the front lot line and a line parallel thereto at the building setback line as required by the respective zoning district regulations. (See Figure 11-13.)
Yard, rear: A yard extending along the full length of the rear lot line and back to a line drawn parallel to the rear lot line at a distance (depth) required by the respective zoning district regulations. On corner lots, the rear yard shall be considered as parallel to the street upon which the lot has its lesser dimension. On both corner lots and interior lots, the rear yard shall be at the opposite end of the lot from the front yard. (See Figure 11-13.)
Yard, side: A yard extending from the real line of the required front yard (the "building setback line") to the rear lot line, at a depth required by the respective zoning district regulations, unless otherwise provided for in the supplemental regulations. (See Figure 11-13.)
Yard, side street: A yard extending along a street right-of-way, and not deemed the front lot line per the regulations of this appendix, from the real line of the required front yard (the "building setback line") to the rear lot line, at a depth required by the respective zoning district regulations, unless otherwise provided for in the supplemental regulations. (See Figure 11-13.)
Figure 11-13. Yards—Corner and Interior Lots
Zoning or zoned: The process of classifying land within the town into areas and districts, such areas and districts being generally referred to as "districts," or "zoning districts," by legislative action and the prescribing and application in each area and district of regulations concerning building and structure designs, building and structure placement, and uses to which land, buildings, and structures within such designated areas and districts may be put.
Zoning administrator: The zoning administrator of the Town of Clifton Forge, Virginia, or an authorized agent or designee thereof.