CARROLL CREEK OVERLAY DISTRICT
Purpose:
(1)
The Carroll Creek Overlay District ("CCO") is established to control development in the area designated the Carroll Creek Overlay District and insure that private investment in the CCO is complementary with design standards outlined in the document entitled Carroll Creek Park Design Development Standards (hereinafter the "Design Standards"), dated November 7, 2003, which document is hereby incorporated by reference. The City hereby adopts the Design Standards as legislative findings as if they were set out in their entirety herein.
(2)
This district establishes design standards to guide the new construction and rehabilitation of buildings, streetscapes, and creekscapes within the Carroll Creek Overlay District.
(3)
The City finds that the standards established in this District should accomplish the following objectives:
A.
To reinforce and build upon Frederick's cultural, historical, and architectural assets;
B.
To create a high quality, pedestrian- and multi-modal-friendly environment in the Carroll Creek Overlay;
C.
To establish a shared public-private partnership that promotes and achieves high quality development and design in Carroll Creek Overlay;
D.
To ensure that structured and surface parking is not visible from Carroll Creek Park;
E.
To minimize the negative impact of large paved surfaces, such as surface parking lots, on the visual quality of the environment;
F.
To create a development pattern that connects the different areas and elements within the Carroll Creek Overlay, without promoting design uniformity;
G.
To reinvigorate the Carroll Creek Overlay's existing commercial areas and residential neighborhoods and promote new mixed-use development in the Carroll Creek Overlay as a means of infusing around-the-clock activity into the area;
H.
To establish a coordinated approach to the City's development review and regulation processes as related to development in the Carroll Creek Overlay and to more clearly communicate the City's development policies for the Carroll Creek Overlay;
I.
To effectuate a fair and predictable development review process within Carroll Creek Overlay, through the use of design development standards and a coordinated review process;
J.
To convey the interests of the community of Frederick through well written, clearly understood development and design standards;
K.
To support, preserve and protect the architectural character and surrounding setting of Frederick's historic downtown core by coordinating with the design criteria set forth in the Frederick Town Historic District Design Guidelines;
L.
To approve development on East Street south of Carroll Creek that compliments the historic district and establishes East Street as a major gateway to downtown Frederick.
(a)
Scope.
(1)
Applicability. This section applies to any site improvements, development, use, or change of use within the Carroll Creek Overlay District, as qualified by subsections (2)B and (2)C, below.
(2)
Relationship to Other Ordinances.
A.
The standards and procedures established by this section do not supersede any federal, state, county or municipal approval procedures, except as provided below.
B.
If any standard in Section 420 is addressed by any other local ordinance, code, or guideline, the more restrictive shall apply. Notwithstanding the previous sentence, any conflict between the Frederick Town Historic District Design Guidelines and Section 420, with respect to new construction that occurs in the area of the Carroll Creek Overlay that is within the Historic District Overlay, shall be resolved by complying with the Frederick Town Historic District Design Guidelines. Where the Frederick Town Historic District Design Guidelines are silent, Section 420 shall apply.
C.
The provisions of subsections (f) and (j) of this section shall not apply to additions, rehabilitation, renovation, replacement buildings, or the demolition of buildings within the Frederick Town Historic District.
D.
The demolition of properties that are included in the National Register of Historic Places, or that are designated by the City as historic properties, or that are designated by the City as historic overlay districts, shall be prohibited unless:
1.
Denial of the application will be deterrent to a major improvement program that will be of substantial benefit to the City;
2.
Denial of the application will not be to the best interest of a majority of persons in the community;
3.
Denial of the application will result in undue financial hardship to the owner.
(b)
District Boundaries. The boundaries of the Carroll Creek Overlay are as established in the Zoning District Map. A copy of the boundaries is attached as Figure 420-1 as a general reference. To the extent that there is any inconsistency between Figure 420-1 and the Zoning District Map, the Zoning District Map controls.
City of Frederick Carroll Creek Overlay District
Figure 420-1 Carroll Creek Overlay District Boundaries (unofficial)
(c)
Zoning Requirements.
(1)
All new residential or mixed use development within the Carroll Creek Overlay is subject to the standards outlined in Section 405, unless otherwise modified by this section.
(2)
One additional dwelling unit beyond the maximum density allowed per Section 405(a), may be obtained per parking space provided in an onsite parking structure as follows:
A.
The parking structure must comply with subsection (g)(3) of this Section;
B.
The additional density, together with any density bonus obtained pursuant to Section 405(d), may not exceed 100% of the density allowed under Section 405(a); and
C.
The minimum parking requirement for all units must be provided.
(d)
Accessory Retail Sales in the M1 Zoning District. Within the CCO, on lots zoned M1 and having frontage on Carroll Creek Park, retail sales is permitted as an accessory use for any manufacturing, processing, assembly, warehouse or distribution center use, subject to the following:
(1)
The gross square footage for accessory retail sales may not exceed 40 percent of the total combined square footage of the manufacturing and retail space;
(2)
At least 15 percent of the net leasable area for accessory retail sales must be dedicated to the sale of goods manufactured, processed, or assembled on site; and
(3)
The accessory retail sales area must occupy the portion of the structure immediately adjacent to Carroll Creek Park, and the primary entrance to the accessory retail sales area must be immediately adjacent to Carroll Creek Park.
(e)
Non-Permitted Uses. The permitted uses within the CCO are the same as those in the underlying zoning district, except that the following uses are not permitted:
(1)
Drive-through uses.
(2)
Fuel sales.
(3)
Wholesale or retail sale, distribution or rental of motor vehicles, motor vehicle supplies, tires, and new and/or used parts or accessories.
(4)
Establishments primarily engaged in providing repair and maintenance services for automotive vehicles.
(5)
Outdoor storage yards unless completely screened.
(6)
Moving or relocation establishments and self-storage facilities
(f)
Height, Placement, Orientation, and Massing. The building height, placement, orientation, and massing for all new construction in the CCO shall conform to the following subsections. All other setbacks shall comply with Section 405. If there is a conflict between this section and Section 405 for any setback, this section shall govern.
(1)
Height Requirements.
A.
A historic building shall be defined as any building that contributes to the Frederick Historic District (National Register of Historic Places), designated a Historic District Overlay by the City of Frederick, or included in the Maryland Inventory of Historic Properties.
B.
The minimum building height shall not be less than 25 feet from grade to the top of the building, excluding mechanical penthouses.
C.
Penthouses that house mechanical equipment may exceed the maximum building height limit by 6 feet with the following conditions: the penthouse must be built of a permitted material (see Table 420-5) that corresponds with or complements the primary building material; the penthouse steps back 20 feet from any building edge; and the sum of all mechanical penthouses comprises no more than 15% of the roof area.
D.
Additions to an existing historic building shall not be more than 15 feet higher than the existing historic building.
E.
On historic buildings within the CCO, additions shall not be built on the front of the building or at the top of the building visible from the right of way or Carroll Creek.
F.
All provisions established in the Table 420-1.
Table 420-1 Height Requirements for New Construction Outside of the Frederick Town Historic District.
(2)
Solar Access Requirements.
A.
This item is only applicable to properties or portions of properties within 150 feet from the center line of Carroll Creek.
B.
The building height, placement, and massing shall be so designed as to provide direct sunlight to the Carroll Creek Linear Park as defined:
Table 420-2 Solar Access Requirements
(3)
Placement.
A.
The maximum front yard setback from the property line is two feet or a minimum setback from the curb line of ten feet, whichever is greater.
B.
The maximum interior setback is ten feet and at least zero feet on one side.
C.
The rear yard setback shall comply with the underlying zoning.
(4)
Orientation.
A.
The dominant elevation shall be defined by the greatest amount of architectural detailing and shall contain the most prominently detailed entrance.
B.
Buildings shall have a dominant elevation face the right of way and Carroll Creek.
C.
Buildings that do not front Carroll Creek shall have the dominant elevation face the right of way.
D.
Buildings that front multiple rights of way shall have the dominant elevation face the widest right of way.
E.
Buildings that face Carroll Creek and multiple rights of way shall have a dominant elevation face Carroll Creek and the widest right of way.
(5)
Massing.
A.
Vertical Bay Expression.
1.
The overall building massing shall be divided into repetitive architectural bays measuring no greater than 30 feet for each individual bay.
2.
Consecutive bays may be no greater than 60 feet in total horizontal length.
3.
A singular building façade shall not exceed 120 feet in length.
4.
No contiguous structure shall exceed 180 feet in horizontal length along any individual right of way.
5.
A vertical transition must be provided between consecutive bays, which shall be offset horizontally no less than six inches and no greater than two feet.
B.
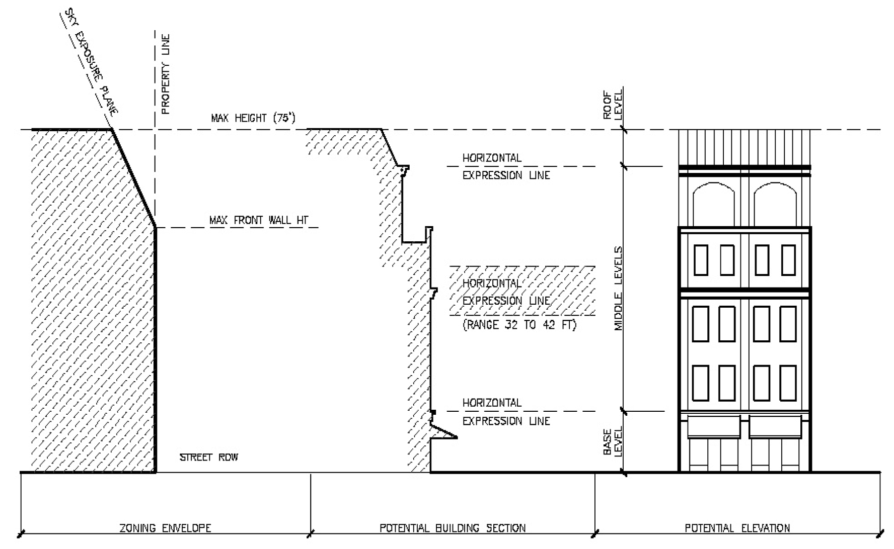
Horizontal Expression Lines.
1.
Building elevations for new construction shall be divided into base level, middle level, and roof level.
2.
Horizontal expression lines shall be provided between each division.
3.
A building exceeding 50 feet in height shall provide a mid-building horizontal expression line within a zone 32 to 42 feet above finish grade.
4.
Horizontal expression lines shall consist of cornices, awnings, canopies, changes in wall materials, textures or patterns, or recessed elements.
C.
Courtyards.
1.
No more than 30 percent of a building façade can be interrupted by a courtyard.
2.
Courtyards shall be defined along the sidewalk by a wall, fence, or colonnade.
D.
Corner Buildings.
1.
Corner buildings that abut a primary intersection shall include at least one of the following elements at that corner: bay or oriel window, recessed entryway, or other detailing or massing that emphasizes the corner. By modification, the upper portion of a corner element may be permitted to exceed the height limitation, but not to exceed 70 feet or 360 mean sea level, whichever is less.
2.
The primary intersections are the following: East Street and Carroll Creek; Patrick Street and Carroll Creek; Patrick Street and East Street; South Street and East Street.
Figure 420-2 Building Massing
Note — The building depicted above is for illustrative purposes only and is not intended
to indicate a preferred architectural style.
Figure 420-4 Height Requirements Within 150 feet of Carroll Creek Center Line
Example of building envelopes in the A.1 Area of Applicability, Table 420-1.
Figure 420-5 Height Requirements on East Street (south of Carroll Creek) and Patrick
Street (east of the NRHP-FHD boundary)
Example of building envelopes in the A.2 Area of Applicability, Table 420-1.
Figure 420-6 Height Requirements in the NRHP-FHD and within 70 feet of the NRHP-FHD,
excluding A.1 and A.2.
Example of building envelopes in the A.3 Area of Applicability, Table 420-1.
Figure 420-7 Height Requirements 70 feet outside of the NRHP-FHD
Examples of building envelopes in the A.4 Area of Applicability, Table 420-1.
(g)
Parking.
(1)
Generally. The number of parking spaces required, parking space dimensions, and all other parking regulations are subject to Section 607 of this Code, except as provided below.
(2)
Location and Number of Spaces.
A.
The purpose of this section is to provide for adequate parking within a reasonable distance of the proposed use, while maintaining flexibility for uses with different peak parking periods. Where parcels within a block are developed by different owners, any required off-street parking requirements shall be accommodated on the same block or adjacent block as the proposed development, unless a written joint use agreement is submitted. The joint use agreement shall be submitted along with an application for site plan review. The joint use agreement shall be considered and approved, approved with conditions, or denied as part of the site plan review. Any approved joint use agreement shall be considered necessary to site plan approval. The applicant shall record a binding restrictive covenant that incorporates the joint use agreement in the Land Records of Frederick County. The joint use agreement shall bind the deed or parcel through a legally enforceable agreement. The joint use agreement shall include the following:
1.
The entire land area subject to the agreement; and
2.
The owner or owners of all structures then existing on such land area; and
3.
All parties having a legal interest in such land area and structures; and
4.
Evidence that is sufficient to establish the status of applicants as owners of parties in interest; and
5.
Plans showing the location of the uses or structures for which off-street parking facilities are required; and
6.
The location of the off street parking facilities; and
7.
The schedule of times used by those sharing the parking facilities in common.
B.
Developments that contain a mix of uses on the same parcel, as set forth in Table 420-3 may reduce the amount of any required parking in accordance with the following methodology:
1.
Determine the minimum parking requirements in accordance with Table 420-3 for each land use as if it were a separate use,
2.
Multiply each amount by the corresponding percentages for each of the five time periods set forth in Columns (B) through (F) of Table 420-3,
3.
Calculate the total for each time period, and
4.
Select the total with the highest value as the required minimum number of parking spaces.
Table 420-3 Shared Parking Ratios
C.
For purposes of this subsection, a "development" includes a proposed development on a single lot or parcel that has more than one use, or developments on different lots or parcels under more than one ownership that are subject to an approved joint use agreement as provided in subsection B., above. No use may reduce its parking requirements pursuant to this section, or change any use after it is approved for a parking reduction pursuant to this section, unless a zoning certificate is approved in accordance with Section 302 of this Code. For uses that are not listed in Table 420-2, the Zoning Administrator shall determine the parking requirements based upon any of the following:
1.
Any binding conditions proposed by the applicant to restrict the hours of operation so that they do not coincide with the peak parking hours of another proposed use; or
2.
Any generally accepted studies, empirical evidence, or other substantially competent evidence that related to the parking demands of the proposed use.
If a use changes to another use in a different category, the Zoning Administrator shall determine if additional parking is required by applying Table 420-2. No zoning certificate shall be approved for the change in use until such additional parking is required.
D.
The minimum number of required parking spaces for a lot or parcel for a use that is located within one-quarter of a mile from a transit station shall be reduced by 50 percent. This subsection does not apply where parking has been reduced pursuant to Section 607(c).
(3)
Structured Parking. In order to minimize the view of parking areas from public places such as streets and Carroll Creek Park, the location and design of public and private parking structures shall comply with the following:
A.
Parking structures shall have non-parking active uses on that portion of all building floors that abut a street. The reviewing Authority may modify this requirement so as to eliminate active uses on the street-facing wall. In considering a request for a modification, the Reviewing Authority shall evaluate the following criteria:
1.
The width of the street right-of-way along the building frontage for which the modification is being requested;
2.
The Comprehensive Plan classification of the street along the building frontage for which the modification is being requested;
3.
The amount of linear frontage of the structure along which the modification is being requested; and
4.
The architectural treatments of the façade along the building frontage for which the modification is being requested.
B.
A parking structure shall not exceed the height of adjacent structures, unless modified by the Reviewing Authority.
C.
No floors of a parking structure shall have frontage on Carroll Creek.
D.
The architectural treatment of parking structures that are visible from the public right of way shall have the same form, scale, massing, rhythm, exterior building materials, colors and textures as adjacent structure(s) on the same block.
E.
Directional signs shall be located at pedestrian entrances and exits to parking structures.
F.
Pedestrian entrances and exits to parking structures shall be accessible from public streets and Carroll Creek.
G.
Public parking structures shall include public restrooms, bike lockers, and vending machines. Private parking structures exceeding 100 spaces or 20,000 square feet shall include restrooms, bike lockers, and vending machines. The Reviewing Authority may waive this requirement if it finds that such facilities are available to the public on the same lot or parcel, or on other parcels on the same block. Restrooms and bike lockers shall not be visible from the public right of way, but shall be visible to the parking attendant. The restrooms shall be made visible from parking spaces in the lot through the use of signage, the placement of the bathrooms relative to parking spaces, and similar wayfinding techniques. The lighting of parking structures shall comply with the security requirements of the Illuminating Engineering Society of North America, IESNA Lighting Handbook (9th Ed. 2000), which document is hereby incorporated by reference.
Figure 420-9 Example of Structured Parking Placement
(4)
Surface Parking. In order to minimize the view of parking areas from public places such as streets and Carroll Creek Park, all surface parking must meet the requirements of this paragraph.
A.
Required surface parking shall be located within the same or adjacent block as the use;
B.
Except as otherwise provided in subparagraph C of this paragraph, surface parking must not be visible from a street right-of-way or Carroll Creek Park;
Figure 420-10 Surface Parking Internal to the Block Core
C.
The reviewing authority may grant a modification to allow surface parking that is visible from a street right-of-way or Carroll Creek Park in accordance with subsection (k)(4) of this section and this paragraph. In order to approve a modification, the reviewing authority must find that the proposed surface parking area:
1.
Will comprise no more than 60 spaces or the number of spaces required to meet the minimum on-site parking standards established in Section 607 of this Code, whichever is less;
2.
Will not exceed 240 feet in length along the frontage of Carroll Creek Park or any right-of-way;
3.
Will be designed with features that will help obscure the visibility of the parking area, such as landscaping or topographical differences; and
4.
Will be screened with a masonry wall that:
a.
Is constructed with materials consistent in appearance with the exterior building materials of the principal use or the architecture of adjacent buildings or hardscapes;
b.
Is at least three feet, but no more than four feet, in height;
c.
Will not obstruct safe visibility for vehicular traffic or pedestrians; and
d.
If facing a public street right-of-way or Carroll Creek Park, incorporates public seating for ever 50 feet of linear frontage.
D.
Planting beds for perimeter and interior parking lot plant materials shall be separated from parking spaces and access aisles by concrete or masonry barrier curbing.
E.
Parking lots shall be separated from sidewalks, streets, or alleys by an open space between the parking area and the edge of the right-of-way. The open space shall be at least five feet in width, or three feet if curb stops are used. This area shall be planted with grass, or shrubbery, and shall incorporate a masonry wall if required under subparagraph (c)(4) of this paragraph. A wall is not required where the parking area abuts an alley.
F.
Interior parking lot plant materials shall be spaced to divide lots into groups of parking spaces. Parking lots shall have one planted island with one shade tree per 20 parking spaces. Planting islands shall:
1.
Have a minimum size of 162 square feet.
2.
Have dimensions of at least nine feet in width and 18 feet in length.
3.
Spaced at intervals not exceeding 90 feet.
G.
A minimum of five percent of the total area of the lot shall be dedicated to planted areas. Plant materials, such as hedges, trees, ground covers, and grass, may be installed in areas of a parking lot that are not devoted to parking spaces, lanes, or other uses.
H.
The required landscaped area for parking lots (see Section 605(g)) may be decreased by 25 percent where:
1.
At least 25 percent of all outdoor vehicular pavement area consists of decorative pavement, such as brick; or
2.
At least 50 percent of all outdoor pedestrian pavement area consists of decorative pavement, such as brick.
(5)
Temporary Parking Lots. Improved temporary parking lots may be established on vacant lots or in conjunction with development projects in order to accommodate vehicles associated with the construction activities. Temporary parking lots are permitted for a period not exceeding one calendar year from the date of initial use. No temporary parking lot shall be established until a zoning certificate is issued. Paving materials for temporary parking lots must be approved by the City Department of Engineering as a dust-free surface, consistent with the Standard Specifications and Details published by the Department of Engineering and incorporated herein by reference.
(h)
Services and Loading.
(1)
Generally. Service and loading areas shall not be visible from the public right-of-way or Carroll Creek Park, except as provided in the following section.
(2)
Loading Areas and Refuse Containers.
A.
Loading areas and refuse containers shall either be located internal to the building they are intended to serve, or external to the building subject to the standards established in subsection B, below.
B.
If loading areas or refuse containers cannot be located internal to the building they serve due to unique topographical conditions or space limitations due to their location in an existing structure, they shall not be visible from the public right-of-way. External loading areas and refuse containers shall be screened on all sides with a minimum six-foot high wall with the exception of the access opening. The maximum height shall be dictated by the underlying zoning code. Pedestrian and vehicle access shall be screened by a solid operable gate of the same height as the wall. The walls, gates, and doors shall be:
1.
Attached to the exterior walls of the principal structure; and
2.
Finished with the same exterior materials as the principal structure. However, gates may be constructed of metal or wood, except as limited in subsection (i).
C.
Loading areas shall be accessible via an operable solid gate and/or door.
D.
Refuse containers shall be placed on a concrete pad with sufficient strength to prevent them from sinking into asphalt or soil. The containers themselves shall be enclosed on all sides with an operable door for inserting refuse.
E.
A common refuse container may be shared between uses on separate lots that do not have sufficient area to store refuse, with the submittal of a shared access agreement signed by all parties involved. The refuse container shall comply with the screening requirements listed above.
F.
All tenants must comply with applicable sections of Chapter 10 of the Frederick City Code.
(3)
Ground Mounted Equipment.
A.
Mechanical, electrical, or plumbing equipment shall be installed in a manner that will not destroy or damage a building's character-defining elements or facade details.
B.
Ground-mounted equipment shall be located within a loading area unless the location is not feasible. Where this location is not feasible, mechanical equipment shall be located where it is not visible from the public right-of-way and adjacent properties. A location within the loading area is not considered "feasible" if the lot size is inadequate for normal loading operations that are customary for the use, and if the mechanical equipment does not exceed the size that is customary for the type of building or structure.
(4)
Roof Mounted Equipment. Roof mounted mechanical units or utility equipment shall be screened from the public right of way and adjacent properties. The method of screening shall be integrated with the structure in terms of its architectural form, materials, color, shape and size. Equipment shall be screened by building elements (such as a penthouse or parapet wall), rather than through add-on screening (such as wood or metal slats). See Section (f)(1)(b).
(5)
Supply and Exhaust Vents. No supply or exhaust vents shall be located on an elevation facing Carroll Creek, on a dominant elevation, or within 20 feet of any pedestrian entrance.
(6)
Noise. Frederick City Code, Sections 15-21 to 15-21.8 is included in this section by reference.
(7)
Communication Antennas and Satellite Dishes. The City hereby finds that the Carroll Creek Overlay is an area with unique aesthetic values and character, and that the unregulated proliferation of communication antennas and satellite dishes would significantly degrade the appearance of the overlay district and its ability to attract new commercial and residential development in this area. The City also finds that the regulations established below are no more burdensome to satellite users than is necessary to achieve the aesthetic, health, or safety objectives established elsewhere in the code. Accordingly, the following standards apply to the establishment of any communication antenna or satellite dish in the Carroll Creek Overlay:
A.
Communication antennas shall comply with Section 780 of the Land Management Code, as well as the following requirements.
B.
Communication antennas are permitted in commercial districts where they are accessory to an established use. Communication antennas, including ancillary appurtenances, or equipment enclosures, shall be camouflaged and aesthetically compatible with buildings in the district. Such facilities may have a secondary function including, but not limited to, the following: church steeple, bell tower, spire, clock tower, cupola, light standard, flagpole with a flag, or similar elements.
C.
Communication antennas are permitted in residential districts where they are accessory to an established use. These structures shall be located in the rear yard, and shall not exceed the maximum building height for the underlying zoning district.
D.
Communication antennas and support structures that are not attached to a building are not permitted in the CCO unless they are not visible from the public right of way.
E.
The Reviewing Authority may grant a modification of these sections where the applicant demonstrates that the proposed modification is needed to comply with state or federal law.
(8)
Utilities.
A.
This subsection applies to utilities such as electric, telephone, cable, gas, sewer, and water (hereinafter "utilities").
B.
Utilities shall be placed underground in new construction or installation of new utility infrastructure.
C.
Utilities shall provide for interconnections such as the installation of sleeves for future extension of piping, shared, and oversized utility connections between buildings and shared entry courts or loading areas.
D.
Exposed exterior mechanical, electrical and plumbing elements such as storage tanks, cooling equipment, air conditioning units, and processing equipment shall not be visible from the public right-of-way. These elements shall:
1.
Incorporate or continue the same materials, rhythm and scale as the building facade; and
2.
Shall be screened from adjacent properties, public rights of way, and public streets in accordance with the City's Land Management Code.
E.
Utility boxes, such as gas and electric meters and cable and telephone boxes, shall be located in the service and/or loading areas of the building they service. Utility boxes shall not front onto public rights-of-way, streets, or Carroll Creek Park unless they are screened completely from view by mature landscaping or building materials that are the same as the principle building.
(i)
Creekscape and Streetscape Requirements.
Table 420-4 Design Standards for Creekscape and Streetscape Development
(j)
Architectural Standards. New construction and additions to existing buildings shall comply with the following architectural design standards. Building elevations shall be comprised of a base level, middle levels, and roof level. The following are the requirements for each of the levels.
Figure 420-11 Composition of a Typical Building Elevation at Maximum Building Height
(1)
Architectural Design Requirements.
A.
The requirements in Table 420-4 apply to all new construction in the CCOD and the rehabilitation of buildings in the CCOD.
B.
All buildings must have a base level, middle level, and roof level.
1.
The base level is the portion of the building elevation starting at the grade at the base of the building and ending below the second floor.
2.
The middle level is the portion of the building elevation above the base level and extending to the top of the highest wall.
3.
The roof level is the area above the uppermost full story of the building.
C.
Conditions regarding use.
1.
On all building types, elevations facing the public right of way shall contain commercial and/or residential uses.
2.
Portions of the first floor of a building may be exempt from the conditions above if one of the following conditions apply:
(a)
A portion of the first floor is used to house mechanical or elevator shafts that cannot be located in an alternate location due to site conditions (not to exceed 10% of the street wall elevation of a building or 40 feet in horizontal length, whichever is less).
(b)
The building is a city owned park and recreational facility (not to exceed 1,000 square feet).
(c)
The facility is a public utility (not to exceed 4,000 square feet).
Table 420-5 Requirements for New Construction and Rehabilitation
(k)
Review and Approval Process. The review process for applications for development approval within the CCO is as follows:
(1)
Generally. The Planning Commission shall review site plans and subdivision plats for the entire area of the CCO. No application for site plan or subdivision plat approval shall be approved by the Planning Commission within the CCO unless it finds that the applicant conforms to the standards established in this section as well as all other applicable City standards.
(2)
Areas within CCO and HDO. Applications for approval within those portions of the Carroll Creek Overlay (CCO) that lay within the Frederick Town Historic District Overlay (HDO) shall be reviewed by the Historic Preservation Commission (HPC). No application for a certificate of approval shall be approved by the HPC unless it finds that the applicant conforms to the standards established in the Frederick Town Historic District Design Guidelines or this section, whichever is applicable.
(3)
Areas within the CCO and outside the HDO. The applicant shall submit to the Planning Commission a schematic design set for review and obtain a Certificate of Urban Design Compliance prior to obtaining unconditional approval of a site plan. The Planning Commission shall grant a Certificate of Urban Design Compliance upon review and certification that the schematic design set is in compliance with sections 420(a) through 420(i). A Certificate of Urban Design Compliance may be obtained concurrently with the review and approval of the associated site plan. The Planning Commission shall conduct two public hearings on an application submitted for concurrent review of the site plan with any associated modification requests, and the Certificate of Urban Design Compliance prior to taking action on the application.
The applicant shall submit to the Planning Commission a design development set for review and obtain a Certificate of Architectural Compliance prior to applying for building permit. The Planning Commission may request the submission of materials, information, and/or samples for clarification of the design development set. The Planning Commission shall grant a Certificate of Architectural Compliance upon review and certification that the design development set is in compliance with all conditions of subsection (j) and the previously approved Certificate of Urban Design Compliance. No building permit application may be filed prior to obtaining a Certificate of Architectural Compliance from the Planning Commission.
(4)
Modifications. Modifications to the height, placement, orientation, massing, landscaping, property access, parking and loading, parkland, skywalks, and architectural standards of this section may be granted by the Reviewing Authority, either pursuant to Section 309 for the Planning Commission or pursuant to the Frederick Town Historic District Design Guidelines for the Historic District Commission. Economic hardship will not be considered a reason for varying from any standard established in the architectural design section. The applicant requesting a modification shall provide a justification statement on how the proposal addresses the provisions of this subsection. Any request for a modification shall require the Reviewing Authority to hold two public hearings on the request.
No modifications may be granted unless the Reviewing Authority finds that:
A.
The modification will not be contrary to the purpose and intent of this Section 420;
B.
The modification is consistent with the Comprehensive Plan and any City adopted plans; and
C.
The application includes compensating design or architectural features so as to meet overall objectives of the particular requirement.
(5)
Architectural Non-Conformity of Existing Structures.
A.
Within the Carroll Creek Overlay, existing structures that do not comply with the provisions of subsection (j), Architectural Standards, may continue to be used in their current condition as legal non-conformities. All other non-conformities are subject to the provisions set forth in Article 9 of the Land Management Code. However, any exterior alterations not considered part of normal maintenance and upkeep of a non-conforming property must be reviewed by the Reviewing Authority. If the building is demolished or vacant for more than one year, any and all new construction on the site must conform to these regulations.
B.
The Reviewing Authority may authorize a modification from the Architectural Standards of subsection (j) for proposed changes and additions to existing structures with architectural non-conformities, provided all the following findings are made:
1.
That because of physical circumstances or conditions, there is no possibility that the property can be developed in strict conformity with the provision of this section;
2.
That the applicant has demonstrated the physical circumstances or conditions precluding conformity with this section was not created by the applicant;
3.
That granting the modification will be in harmony with the objectives and general purpose of the Carroll Creek Overlay; and
4.
That the modification is the least necessary to afford relief from this section.
C.
In granting the modification, the reviewing authority may prescribe appropriate safeguards and conditions in conformity with this section. Violation of such conditions and safeguards, when made as part of the terms under which the modification is granted, shall be a violation of this Code.
(Supp. No. 3, Ord. No. G-06-21, § 1, 7-6-06; Supp. No. 5, Ord. No. G-07-22, §§ 8—10, 10-18-07; Supp. No. 6, Ord. No. G-08-4, § 1, 2-7-08; Ord. No. G-20-15, § I, 6-18-20; Ord. No. G-23-16, § I, 9-21-23)
CARROLL CREEK OVERLAY DISTRICT
Purpose:
(1)
The Carroll Creek Overlay District ("CCO") is established to control development in the area designated the Carroll Creek Overlay District and insure that private investment in the CCO is complementary with design standards outlined in the document entitled Carroll Creek Park Design Development Standards (hereinafter the "Design Standards"), dated November 7, 2003, which document is hereby incorporated by reference. The City hereby adopts the Design Standards as legislative findings as if they were set out in their entirety herein.
(2)
This district establishes design standards to guide the new construction and rehabilitation of buildings, streetscapes, and creekscapes within the Carroll Creek Overlay District.
(3)
The City finds that the standards established in this District should accomplish the following objectives:
A.
To reinforce and build upon Frederick's cultural, historical, and architectural assets;
B.
To create a high quality, pedestrian- and multi-modal-friendly environment in the Carroll Creek Overlay;
C.
To establish a shared public-private partnership that promotes and achieves high quality development and design in Carroll Creek Overlay;
D.
To ensure that structured and surface parking is not visible from Carroll Creek Park;
E.
To minimize the negative impact of large paved surfaces, such as surface parking lots, on the visual quality of the environment;
F.
To create a development pattern that connects the different areas and elements within the Carroll Creek Overlay, without promoting design uniformity;
G.
To reinvigorate the Carroll Creek Overlay's existing commercial areas and residential neighborhoods and promote new mixed-use development in the Carroll Creek Overlay as a means of infusing around-the-clock activity into the area;
H.
To establish a coordinated approach to the City's development review and regulation processes as related to development in the Carroll Creek Overlay and to more clearly communicate the City's development policies for the Carroll Creek Overlay;
I.
To effectuate a fair and predictable development review process within Carroll Creek Overlay, through the use of design development standards and a coordinated review process;
J.
To convey the interests of the community of Frederick through well written, clearly understood development and design standards;
K.
To support, preserve and protect the architectural character and surrounding setting of Frederick's historic downtown core by coordinating with the design criteria set forth in the Frederick Town Historic District Design Guidelines;
L.
To approve development on East Street south of Carroll Creek that compliments the historic district and establishes East Street as a major gateway to downtown Frederick.
(a)
Scope.
(1)
Applicability. This section applies to any site improvements, development, use, or change of use within the Carroll Creek Overlay District, as qualified by subsections (2)B and (2)C, below.
(2)
Relationship to Other Ordinances.
A.
The standards and procedures established by this section do not supersede any federal, state, county or municipal approval procedures, except as provided below.
B.
If any standard in Section 420 is addressed by any other local ordinance, code, or guideline, the more restrictive shall apply. Notwithstanding the previous sentence, any conflict between the Frederick Town Historic District Design Guidelines and Section 420, with respect to new construction that occurs in the area of the Carroll Creek Overlay that is within the Historic District Overlay, shall be resolved by complying with the Frederick Town Historic District Design Guidelines. Where the Frederick Town Historic District Design Guidelines are silent, Section 420 shall apply.
C.
The provisions of subsections (f) and (j) of this section shall not apply to additions, rehabilitation, renovation, replacement buildings, or the demolition of buildings within the Frederick Town Historic District.
D.
The demolition of properties that are included in the National Register of Historic Places, or that are designated by the City as historic properties, or that are designated by the City as historic overlay districts, shall be prohibited unless:
1.
Denial of the application will be deterrent to a major improvement program that will be of substantial benefit to the City;
2.
Denial of the application will not be to the best interest of a majority of persons in the community;
3.
Denial of the application will result in undue financial hardship to the owner.
(b)
District Boundaries. The boundaries of the Carroll Creek Overlay are as established in the Zoning District Map. A copy of the boundaries is attached as Figure 420-1 as a general reference. To the extent that there is any inconsistency between Figure 420-1 and the Zoning District Map, the Zoning District Map controls.
City of Frederick Carroll Creek Overlay District
Figure 420-1 Carroll Creek Overlay District Boundaries (unofficial)
(c)
Zoning Requirements.
(1)
All new residential or mixed use development within the Carroll Creek Overlay is subject to the standards outlined in Section 405, unless otherwise modified by this section.
(2)
One additional dwelling unit beyond the maximum density allowed per Section 405(a), may be obtained per parking space provided in an onsite parking structure as follows:
A.
The parking structure must comply with subsection (g)(3) of this Section;
B.
The additional density, together with any density bonus obtained pursuant to Section 405(d), may not exceed 100% of the density allowed under Section 405(a); and
C.
The minimum parking requirement for all units must be provided.
(d)
Accessory Retail Sales in the M1 Zoning District. Within the CCO, on lots zoned M1 and having frontage on Carroll Creek Park, retail sales is permitted as an accessory use for any manufacturing, processing, assembly, warehouse or distribution center use, subject to the following:
(1)
The gross square footage for accessory retail sales may not exceed 40 percent of the total combined square footage of the manufacturing and retail space;
(2)
At least 15 percent of the net leasable area for accessory retail sales must be dedicated to the sale of goods manufactured, processed, or assembled on site; and
(3)
The accessory retail sales area must occupy the portion of the structure immediately adjacent to Carroll Creek Park, and the primary entrance to the accessory retail sales area must be immediately adjacent to Carroll Creek Park.
(e)
Non-Permitted Uses. The permitted uses within the CCO are the same as those in the underlying zoning district, except that the following uses are not permitted:
(1)
Drive-through uses.
(2)
Fuel sales.
(3)
Wholesale or retail sale, distribution or rental of motor vehicles, motor vehicle supplies, tires, and new and/or used parts or accessories.
(4)
Establishments primarily engaged in providing repair and maintenance services for automotive vehicles.
(5)
Outdoor storage yards unless completely screened.
(6)
Moving or relocation establishments and self-storage facilities
(f)
Height, Placement, Orientation, and Massing. The building height, placement, orientation, and massing for all new construction in the CCO shall conform to the following subsections. All other setbacks shall comply with Section 405. If there is a conflict between this section and Section 405 for any setback, this section shall govern.
(1)
Height Requirements.
A.
A historic building shall be defined as any building that contributes to the Frederick Historic District (National Register of Historic Places), designated a Historic District Overlay by the City of Frederick, or included in the Maryland Inventory of Historic Properties.
B.
The minimum building height shall not be less than 25 feet from grade to the top of the building, excluding mechanical penthouses.
C.
Penthouses that house mechanical equipment may exceed the maximum building height limit by 6 feet with the following conditions: the penthouse must be built of a permitted material (see Table 420-5) that corresponds with or complements the primary building material; the penthouse steps back 20 feet from any building edge; and the sum of all mechanical penthouses comprises no more than 15% of the roof area.
D.
Additions to an existing historic building shall not be more than 15 feet higher than the existing historic building.
E.
On historic buildings within the CCO, additions shall not be built on the front of the building or at the top of the building visible from the right of way or Carroll Creek.
F.
All provisions established in the Table 420-1.
Table 420-1 Height Requirements for New Construction Outside of the Frederick Town Historic District.
(2)
Solar Access Requirements.
A.
This item is only applicable to properties or portions of properties within 150 feet from the center line of Carroll Creek.
B.
The building height, placement, and massing shall be so designed as to provide direct sunlight to the Carroll Creek Linear Park as defined:
Table 420-2 Solar Access Requirements
(3)
Placement.
A.
The maximum front yard setback from the property line is two feet or a minimum setback from the curb line of ten feet, whichever is greater.
B.
The maximum interior setback is ten feet and at least zero feet on one side.
C.
The rear yard setback shall comply with the underlying zoning.
(4)
Orientation.
A.
The dominant elevation shall be defined by the greatest amount of architectural detailing and shall contain the most prominently detailed entrance.
B.
Buildings shall have a dominant elevation face the right of way and Carroll Creek.
C.
Buildings that do not front Carroll Creek shall have the dominant elevation face the right of way.
D.
Buildings that front multiple rights of way shall have the dominant elevation face the widest right of way.
E.
Buildings that face Carroll Creek and multiple rights of way shall have a dominant elevation face Carroll Creek and the widest right of way.
(5)
Massing.
A.
Vertical Bay Expression.
1.
The overall building massing shall be divided into repetitive architectural bays measuring no greater than 30 feet for each individual bay.
2.
Consecutive bays may be no greater than 60 feet in total horizontal length.
3.
A singular building façade shall not exceed 120 feet in length.
4.
No contiguous structure shall exceed 180 feet in horizontal length along any individual right of way.
5.
A vertical transition must be provided between consecutive bays, which shall be offset horizontally no less than six inches and no greater than two feet.
B.
Horizontal Expression Lines.
1.
Building elevations for new construction shall be divided into base level, middle level, and roof level.
2.
Horizontal expression lines shall be provided between each division.
3.
A building exceeding 50 feet in height shall provide a mid-building horizontal expression line within a zone 32 to 42 feet above finish grade.
4.
Horizontal expression lines shall consist of cornices, awnings, canopies, changes in wall materials, textures or patterns, or recessed elements.
C.
Courtyards.
1.
No more than 30 percent of a building façade can be interrupted by a courtyard.
2.
Courtyards shall be defined along the sidewalk by a wall, fence, or colonnade.
D.
Corner Buildings.
1.
Corner buildings that abut a primary intersection shall include at least one of the following elements at that corner: bay or oriel window, recessed entryway, or other detailing or massing that emphasizes the corner. By modification, the upper portion of a corner element may be permitted to exceed the height limitation, but not to exceed 70 feet or 360 mean sea level, whichever is less.
2.
The primary intersections are the following: East Street and Carroll Creek; Patrick Street and Carroll Creek; Patrick Street and East Street; South Street and East Street.
Figure 420-2 Building Massing
Note — The building depicted above is for illustrative purposes only and is not intended
to indicate a preferred architectural style.
Figure 420-4 Height Requirements Within 150 feet of Carroll Creek Center Line
Example of building envelopes in the A.1 Area of Applicability, Table 420-1.
Figure 420-5 Height Requirements on East Street (south of Carroll Creek) and Patrick
Street (east of the NRHP-FHD boundary)
Example of building envelopes in the A.2 Area of Applicability, Table 420-1.
Figure 420-6 Height Requirements in the NRHP-FHD and within 70 feet of the NRHP-FHD,
excluding A.1 and A.2.
Example of building envelopes in the A.3 Area of Applicability, Table 420-1.
Figure 420-7 Height Requirements 70 feet outside of the NRHP-FHD
Examples of building envelopes in the A.4 Area of Applicability, Table 420-1.
(g)
Parking.
(1)
Generally. The number of parking spaces required, parking space dimensions, and all other parking regulations are subject to Section 607 of this Code, except as provided below.
(2)
Location and Number of Spaces.
A.
The purpose of this section is to provide for adequate parking within a reasonable distance of the proposed use, while maintaining flexibility for uses with different peak parking periods. Where parcels within a block are developed by different owners, any required off-street parking requirements shall be accommodated on the same block or adjacent block as the proposed development, unless a written joint use agreement is submitted. The joint use agreement shall be submitted along with an application for site plan review. The joint use agreement shall be considered and approved, approved with conditions, or denied as part of the site plan review. Any approved joint use agreement shall be considered necessary to site plan approval. The applicant shall record a binding restrictive covenant that incorporates the joint use agreement in the Land Records of Frederick County. The joint use agreement shall bind the deed or parcel through a legally enforceable agreement. The joint use agreement shall include the following:
1.
The entire land area subject to the agreement; and
2.
The owner or owners of all structures then existing on such land area; and
3.
All parties having a legal interest in such land area and structures; and
4.
Evidence that is sufficient to establish the status of applicants as owners of parties in interest; and
5.
Plans showing the location of the uses or structures for which off-street parking facilities are required; and
6.
The location of the off street parking facilities; and
7.
The schedule of times used by those sharing the parking facilities in common.
B.
Developments that contain a mix of uses on the same parcel, as set forth in Table 420-3 may reduce the amount of any required parking in accordance with the following methodology:
1.
Determine the minimum parking requirements in accordance with Table 420-3 for each land use as if it were a separate use,
2.
Multiply each amount by the corresponding percentages for each of the five time periods set forth in Columns (B) through (F) of Table 420-3,
3.
Calculate the total for each time period, and
4.
Select the total with the highest value as the required minimum number of parking spaces.
Table 420-3 Shared Parking Ratios
C.
For purposes of this subsection, a "development" includes a proposed development on a single lot or parcel that has more than one use, or developments on different lots or parcels under more than one ownership that are subject to an approved joint use agreement as provided in subsection B., above. No use may reduce its parking requirements pursuant to this section, or change any use after it is approved for a parking reduction pursuant to this section, unless a zoning certificate is approved in accordance with Section 302 of this Code. For uses that are not listed in Table 420-2, the Zoning Administrator shall determine the parking requirements based upon any of the following:
1.
Any binding conditions proposed by the applicant to restrict the hours of operation so that they do not coincide with the peak parking hours of another proposed use; or
2.
Any generally accepted studies, empirical evidence, or other substantially competent evidence that related to the parking demands of the proposed use.
If a use changes to another use in a different category, the Zoning Administrator shall determine if additional parking is required by applying Table 420-2. No zoning certificate shall be approved for the change in use until such additional parking is required.
D.
The minimum number of required parking spaces for a lot or parcel for a use that is located within one-quarter of a mile from a transit station shall be reduced by 50 percent. This subsection does not apply where parking has been reduced pursuant to Section 607(c).
(3)
Structured Parking. In order to minimize the view of parking areas from public places such as streets and Carroll Creek Park, the location and design of public and private parking structures shall comply with the following:
A.
Parking structures shall have non-parking active uses on that portion of all building floors that abut a street. The reviewing Authority may modify this requirement so as to eliminate active uses on the street-facing wall. In considering a request for a modification, the Reviewing Authority shall evaluate the following criteria:
1.
The width of the street right-of-way along the building frontage for which the modification is being requested;
2.
The Comprehensive Plan classification of the street along the building frontage for which the modification is being requested;
3.
The amount of linear frontage of the structure along which the modification is being requested; and
4.
The architectural treatments of the façade along the building frontage for which the modification is being requested.
B.
A parking structure shall not exceed the height of adjacent structures, unless modified by the Reviewing Authority.
C.
No floors of a parking structure shall have frontage on Carroll Creek.
D.
The architectural treatment of parking structures that are visible from the public right of way shall have the same form, scale, massing, rhythm, exterior building materials, colors and textures as adjacent structure(s) on the same block.
E.
Directional signs shall be located at pedestrian entrances and exits to parking structures.
F.
Pedestrian entrances and exits to parking structures shall be accessible from public streets and Carroll Creek.
G.
Public parking structures shall include public restrooms, bike lockers, and vending machines. Private parking structures exceeding 100 spaces or 20,000 square feet shall include restrooms, bike lockers, and vending machines. The Reviewing Authority may waive this requirement if it finds that such facilities are available to the public on the same lot or parcel, or on other parcels on the same block. Restrooms and bike lockers shall not be visible from the public right of way, but shall be visible to the parking attendant. The restrooms shall be made visible from parking spaces in the lot through the use of signage, the placement of the bathrooms relative to parking spaces, and similar wayfinding techniques. The lighting of parking structures shall comply with the security requirements of the Illuminating Engineering Society of North America, IESNA Lighting Handbook (9th Ed. 2000), which document is hereby incorporated by reference.
Figure 420-9 Example of Structured Parking Placement
(4)
Surface Parking. In order to minimize the view of parking areas from public places such as streets and Carroll Creek Park, all surface parking must meet the requirements of this paragraph.
A.
Required surface parking shall be located within the same or adjacent block as the use;
B.
Except as otherwise provided in subparagraph C of this paragraph, surface parking must not be visible from a street right-of-way or Carroll Creek Park;
Figure 420-10 Surface Parking Internal to the Block Core
C.
The reviewing authority may grant a modification to allow surface parking that is visible from a street right-of-way or Carroll Creek Park in accordance with subsection (k)(4) of this section and this paragraph. In order to approve a modification, the reviewing authority must find that the proposed surface parking area:
1.
Will comprise no more than 60 spaces or the number of spaces required to meet the minimum on-site parking standards established in Section 607 of this Code, whichever is less;
2.
Will not exceed 240 feet in length along the frontage of Carroll Creek Park or any right-of-way;
3.
Will be designed with features that will help obscure the visibility of the parking area, such as landscaping or topographical differences; and
4.
Will be screened with a masonry wall that:
a.
Is constructed with materials consistent in appearance with the exterior building materials of the principal use or the architecture of adjacent buildings or hardscapes;
b.
Is at least three feet, but no more than four feet, in height;
c.
Will not obstruct safe visibility for vehicular traffic or pedestrians; and
d.
If facing a public street right-of-way or Carroll Creek Park, incorporates public seating for ever 50 feet of linear frontage.
D.
Planting beds for perimeter and interior parking lot plant materials shall be separated from parking spaces and access aisles by concrete or masonry barrier curbing.
E.
Parking lots shall be separated from sidewalks, streets, or alleys by an open space between the parking area and the edge of the right-of-way. The open space shall be at least five feet in width, or three feet if curb stops are used. This area shall be planted with grass, or shrubbery, and shall incorporate a masonry wall if required under subparagraph (c)(4) of this paragraph. A wall is not required where the parking area abuts an alley.
F.
Interior parking lot plant materials shall be spaced to divide lots into groups of parking spaces. Parking lots shall have one planted island with one shade tree per 20 parking spaces. Planting islands shall:
1.
Have a minimum size of 162 square feet.
2.
Have dimensions of at least nine feet in width and 18 feet in length.
3.
Spaced at intervals not exceeding 90 feet.
G.
A minimum of five percent of the total area of the lot shall be dedicated to planted areas. Plant materials, such as hedges, trees, ground covers, and grass, may be installed in areas of a parking lot that are not devoted to parking spaces, lanes, or other uses.
H.
The required landscaped area for parking lots (see Section 605(g)) may be decreased by 25 percent where:
1.
At least 25 percent of all outdoor vehicular pavement area consists of decorative pavement, such as brick; or
2.
At least 50 percent of all outdoor pedestrian pavement area consists of decorative pavement, such as brick.
(5)
Temporary Parking Lots. Improved temporary parking lots may be established on vacant lots or in conjunction with development projects in order to accommodate vehicles associated with the construction activities. Temporary parking lots are permitted for a period not exceeding one calendar year from the date of initial use. No temporary parking lot shall be established until a zoning certificate is issued. Paving materials for temporary parking lots must be approved by the City Department of Engineering as a dust-free surface, consistent with the Standard Specifications and Details published by the Department of Engineering and incorporated herein by reference.
(h)
Services and Loading.
(1)
Generally. Service and loading areas shall not be visible from the public right-of-way or Carroll Creek Park, except as provided in the following section.
(2)
Loading Areas and Refuse Containers.
A.
Loading areas and refuse containers shall either be located internal to the building they are intended to serve, or external to the building subject to the standards established in subsection B, below.
B.
If loading areas or refuse containers cannot be located internal to the building they serve due to unique topographical conditions or space limitations due to their location in an existing structure, they shall not be visible from the public right-of-way. External loading areas and refuse containers shall be screened on all sides with a minimum six-foot high wall with the exception of the access opening. The maximum height shall be dictated by the underlying zoning code. Pedestrian and vehicle access shall be screened by a solid operable gate of the same height as the wall. The walls, gates, and doors shall be:
1.
Attached to the exterior walls of the principal structure; and
2.
Finished with the same exterior materials as the principal structure. However, gates may be constructed of metal or wood, except as limited in subsection (i).
C.
Loading areas shall be accessible via an operable solid gate and/or door.
D.
Refuse containers shall be placed on a concrete pad with sufficient strength to prevent them from sinking into asphalt or soil. The containers themselves shall be enclosed on all sides with an operable door for inserting refuse.
E.
A common refuse container may be shared between uses on separate lots that do not have sufficient area to store refuse, with the submittal of a shared access agreement signed by all parties involved. The refuse container shall comply with the screening requirements listed above.
F.
All tenants must comply with applicable sections of Chapter 10 of the Frederick City Code.
(3)
Ground Mounted Equipment.
A.
Mechanical, electrical, or plumbing equipment shall be installed in a manner that will not destroy or damage a building's character-defining elements or facade details.
B.
Ground-mounted equipment shall be located within a loading area unless the location is not feasible. Where this location is not feasible, mechanical equipment shall be located where it is not visible from the public right-of-way and adjacent properties. A location within the loading area is not considered "feasible" if the lot size is inadequate for normal loading operations that are customary for the use, and if the mechanical equipment does not exceed the size that is customary for the type of building or structure.
(4)
Roof Mounted Equipment. Roof mounted mechanical units or utility equipment shall be screened from the public right of way and adjacent properties. The method of screening shall be integrated with the structure in terms of its architectural form, materials, color, shape and size. Equipment shall be screened by building elements (such as a penthouse or parapet wall), rather than through add-on screening (such as wood or metal slats). See Section (f)(1)(b).
(5)
Supply and Exhaust Vents. No supply or exhaust vents shall be located on an elevation facing Carroll Creek, on a dominant elevation, or within 20 feet of any pedestrian entrance.
(6)
Noise. Frederick City Code, Sections 15-21 to 15-21.8 is included in this section by reference.
(7)
Communication Antennas and Satellite Dishes. The City hereby finds that the Carroll Creek Overlay is an area with unique aesthetic values and character, and that the unregulated proliferation of communication antennas and satellite dishes would significantly degrade the appearance of the overlay district and its ability to attract new commercial and residential development in this area. The City also finds that the regulations established below are no more burdensome to satellite users than is necessary to achieve the aesthetic, health, or safety objectives established elsewhere in the code. Accordingly, the following standards apply to the establishment of any communication antenna or satellite dish in the Carroll Creek Overlay:
A.
Communication antennas shall comply with Section 780 of the Land Management Code, as well as the following requirements.
B.
Communication antennas are permitted in commercial districts where they are accessory to an established use. Communication antennas, including ancillary appurtenances, or equipment enclosures, shall be camouflaged and aesthetically compatible with buildings in the district. Such facilities may have a secondary function including, but not limited to, the following: church steeple, bell tower, spire, clock tower, cupola, light standard, flagpole with a flag, or similar elements.
C.
Communication antennas are permitted in residential districts where they are accessory to an established use. These structures shall be located in the rear yard, and shall not exceed the maximum building height for the underlying zoning district.
D.
Communication antennas and support structures that are not attached to a building are not permitted in the CCO unless they are not visible from the public right of way.
E.
The Reviewing Authority may grant a modification of these sections where the applicant demonstrates that the proposed modification is needed to comply with state or federal law.
(8)
Utilities.
A.
This subsection applies to utilities such as electric, telephone, cable, gas, sewer, and water (hereinafter "utilities").
B.
Utilities shall be placed underground in new construction or installation of new utility infrastructure.
C.
Utilities shall provide for interconnections such as the installation of sleeves for future extension of piping, shared, and oversized utility connections between buildings and shared entry courts or loading areas.
D.
Exposed exterior mechanical, electrical and plumbing elements such as storage tanks, cooling equipment, air conditioning units, and processing equipment shall not be visible from the public right-of-way. These elements shall:
1.
Incorporate or continue the same materials, rhythm and scale as the building facade; and
2.
Shall be screened from adjacent properties, public rights of way, and public streets in accordance with the City's Land Management Code.
E.
Utility boxes, such as gas and electric meters and cable and telephone boxes, shall be located in the service and/or loading areas of the building they service. Utility boxes shall not front onto public rights-of-way, streets, or Carroll Creek Park unless they are screened completely from view by mature landscaping or building materials that are the same as the principle building.
(i)
Creekscape and Streetscape Requirements.
Table 420-4 Design Standards for Creekscape and Streetscape Development
(j)
Architectural Standards. New construction and additions to existing buildings shall comply with the following architectural design standards. Building elevations shall be comprised of a base level, middle levels, and roof level. The following are the requirements for each of the levels.
Figure 420-11 Composition of a Typical Building Elevation at Maximum Building Height
(1)
Architectural Design Requirements.
A.
The requirements in Table 420-4 apply to all new construction in the CCOD and the rehabilitation of buildings in the CCOD.
B.
All buildings must have a base level, middle level, and roof level.
1.
The base level is the portion of the building elevation starting at the grade at the base of the building and ending below the second floor.
2.
The middle level is the portion of the building elevation above the base level and extending to the top of the highest wall.
3.
The roof level is the area above the uppermost full story of the building.
C.
Conditions regarding use.
1.
On all building types, elevations facing the public right of way shall contain commercial and/or residential uses.
2.
Portions of the first floor of a building may be exempt from the conditions above if one of the following conditions apply:
(a)
A portion of the first floor is used to house mechanical or elevator shafts that cannot be located in an alternate location due to site conditions (not to exceed 10% of the street wall elevation of a building or 40 feet in horizontal length, whichever is less).
(b)
The building is a city owned park and recreational facility (not to exceed 1,000 square feet).
(c)
The facility is a public utility (not to exceed 4,000 square feet).
Table 420-5 Requirements for New Construction and Rehabilitation
(k)
Review and Approval Process. The review process for applications for development approval within the CCO is as follows:
(1)
Generally. The Planning Commission shall review site plans and subdivision plats for the entire area of the CCO. No application for site plan or subdivision plat approval shall be approved by the Planning Commission within the CCO unless it finds that the applicant conforms to the standards established in this section as well as all other applicable City standards.
(2)
Areas within CCO and HDO. Applications for approval within those portions of the Carroll Creek Overlay (CCO) that lay within the Frederick Town Historic District Overlay (HDO) shall be reviewed by the Historic Preservation Commission (HPC). No application for a certificate of approval shall be approved by the HPC unless it finds that the applicant conforms to the standards established in the Frederick Town Historic District Design Guidelines or this section, whichever is applicable.
(3)
Areas within the CCO and outside the HDO. The applicant shall submit to the Planning Commission a schematic design set for review and obtain a Certificate of Urban Design Compliance prior to obtaining unconditional approval of a site plan. The Planning Commission shall grant a Certificate of Urban Design Compliance upon review and certification that the schematic design set is in compliance with sections 420(a) through 420(i). A Certificate of Urban Design Compliance may be obtained concurrently with the review and approval of the associated site plan. The Planning Commission shall conduct two public hearings on an application submitted for concurrent review of the site plan with any associated modification requests, and the Certificate of Urban Design Compliance prior to taking action on the application.
The applicant shall submit to the Planning Commission a design development set for review and obtain a Certificate of Architectural Compliance prior to applying for building permit. The Planning Commission may request the submission of materials, information, and/or samples for clarification of the design development set. The Planning Commission shall grant a Certificate of Architectural Compliance upon review and certification that the design development set is in compliance with all conditions of subsection (j) and the previously approved Certificate of Urban Design Compliance. No building permit application may be filed prior to obtaining a Certificate of Architectural Compliance from the Planning Commission.
(4)
Modifications. Modifications to the height, placement, orientation, massing, landscaping, property access, parking and loading, parkland, skywalks, and architectural standards of this section may be granted by the Reviewing Authority, either pursuant to Section 309 for the Planning Commission or pursuant to the Frederick Town Historic District Design Guidelines for the Historic District Commission. Economic hardship will not be considered a reason for varying from any standard established in the architectural design section. The applicant requesting a modification shall provide a justification statement on how the proposal addresses the provisions of this subsection. Any request for a modification shall require the Reviewing Authority to hold two public hearings on the request.
No modifications may be granted unless the Reviewing Authority finds that:
A.
The modification will not be contrary to the purpose and intent of this Section 420;
B.
The modification is consistent with the Comprehensive Plan and any City adopted plans; and
C.
The application includes compensating design or architectural features so as to meet overall objectives of the particular requirement.
(5)
Architectural Non-Conformity of Existing Structures.
A.
Within the Carroll Creek Overlay, existing structures that do not comply with the provisions of subsection (j), Architectural Standards, may continue to be used in their current condition as legal non-conformities. All other non-conformities are subject to the provisions set forth in Article 9 of the Land Management Code. However, any exterior alterations not considered part of normal maintenance and upkeep of a non-conforming property must be reviewed by the Reviewing Authority. If the building is demolished or vacant for more than one year, any and all new construction on the site must conform to these regulations.
B.
The Reviewing Authority may authorize a modification from the Architectural Standards of subsection (j) for proposed changes and additions to existing structures with architectural non-conformities, provided all the following findings are made:
1.
That because of physical circumstances or conditions, there is no possibility that the property can be developed in strict conformity with the provision of this section;
2.
That the applicant has demonstrated the physical circumstances or conditions precluding conformity with this section was not created by the applicant;
3.
That granting the modification will be in harmony with the objectives and general purpose of the Carroll Creek Overlay; and
4.
That the modification is the least necessary to afford relief from this section.
C.
In granting the modification, the reviewing authority may prescribe appropriate safeguards and conditions in conformity with this section. Violation of such conditions and safeguards, when made as part of the terms under which the modification is granted, shall be a violation of this Code.
(Supp. No. 3, Ord. No. G-06-21, § 1, 7-6-06; Supp. No. 5, Ord. No. G-07-22, §§ 8—10, 10-18-07; Supp. No. 6, Ord. No. G-08-4, § 1, 2-7-08; Ord. No. G-20-15, § I, 6-18-20; Ord. No. G-23-16, § I, 9-21-23)