16.- BUILDING SITE REGULATIONS
No building permit and no certificate of use and occupancy shall be issued for a building or use of land until the Director has verified by official records that the parcel of land upon which such building or use of land is to be established is a building site.
(1)
Lawful, nonconforming building sites.
a.
Any parcel of land that was established as a building site by the recordation of a final tract map, a final parcel map, a record of survey recorded pursuant to an approved division of land, a lot line adjustment, a certificate of compliance; or by a deed of conveyance or contract of sale or in any other legal manner recorded prior to establishment of this title, as amended, and which complied with all of the requirements of applicable regulations in effect at the time of recordation in the office of the County Recorder, is considered a building site.
b.
Building sites established by the preceding section that are subsequently reduced in area by rights-of-way or easements that prohibit the surface use of the property may be established as legal building sites if the Director determines that the site will be able to provide a building envelope comparable to similar building sites in the area.
(2)
Creation of building sites. A building site may be created by the recordation of a final tract map, a final parcel map, or a lot line adjustment. The creation of any building site shall conform to the following:
a.
Each building site shall be shown on the recorded document as a numbered lot or parcel.
b.
Each building site shall be of sufficient area and width to comply with the area and width requirements for the zoning district in which it is located.
c.
Each building site shall either:
1.
Abut a public street, having a right of access for vehicles and pedestrians, and enjoy practical and physical access to such street, for a minimum width of 20 continuous feet; or
2.
Have a recorded right of access for vehicles and pedestrians for a minimum continuous width of 20 feet, 16 feet paved, via street or other vehicular accessway, and enjoy practical and physical access, from the building site to a public street.
(3)
Lot line adjustments. Lot line adjustments per the Subdivision Code shall not result in requiring the approval of a variance from the applicable zoning district minimum lot size.
(4)
Building site area.
a.
Building site area shall be calculated by measuring the site horizontally as a level plane. Rights-of-way or easements that prohibit surface use of the site, except easements for open space purposes on single-family lots, shall be excluded from the calculation. The minimum building site area required by the applicable district or planning area regulations shall be undivided and relatively compact although the entire building site may be larger with diffuse parts.
b.
That portion of a panhandle or flag building site that is used for purposes and is less than 40 feet in width shall not be used in calculating the area of the building site.
(Ord. No. 03-03, § 5(18.30.052), 4-16-2003)
(a)
Unimproved building site. If a portion of a building site containing no structures is acquired for public use by condemnation, dedication, purchase or any other means, the status of the remainder of the building site shall be determined as follows:
(1)
If such remainder has 80 percent or more of the area and width required by the district regulations at the time of acquisition, such remainder shall constitute a building site.
(2)
If such remainder has less than 80 percent but not less than 50 percent of the required area or width, or both, but otherwise meets all of the requirements for a building site, the public agency concerned may file an application for a use permit, whether or not the acquisition has been completed, to establish if such remainder shall constitute a building site.
(3)
A property owner may apply for a use permit at any time to establish the status of such remainder.
(b)
Improved building site. If a portion of a building site improved with structures is acquired for public use by condemnation, dedication, purchase or any other means, the status of the remainder of the building site shall be determined as follows:
(1)
If such remainder has less than 80 percent or more of the area and width required by the district regulations at the time of acquisition, such remainder shall constitute a building site.
(2)
If such remainder has less than 80 percent but not less than 50 percent of the required area or width, or both, but otherwise meets all of the requirements for a building site, the public agency concerned may file an application of a use permit, whether or not the acquisition has been completed, to establish if such remainder shall constitute a building site.
(3)
If such remainder has setbacks or distances between buildings that have 80 percent or more of the depth or width, or both, required for each of such spaces, they shall constitute the required spaces.
(4)
If such remainder has setbacks or distances between buildings which have less than 80 percent but not less than 60 percent of the depth or width, or both, required for each of such spaces, the public agency concerned may file an application for a use permit, whether or not the acquisition has been completed, to establish if such spaces shall constitute the required spaces. Furthermore, the public agency concerned may file an application for a use permit, whether or not the acquisition has been completed, to establish yards or distances, between buildings associated with structures to be relocated, consisting of less than 80 percent of the depth or width, or both, required for such space.
(5)
A property owner may apply for a use permit at any time to establish the status of such remainders.
(c)
Conflicts with other requirements. Any conflict with the requirements of the Zoning Code other than those inherent in the preceding Subsections (a) and (b), caused by acquisition for public use by condemnation, dedication, purchase or any other means, shall be subject to the approval by the approving authority. Any use permit application filed pursuant to the provision of this section shall not be approved unless the approving authority finds:
(1)
The remainder of the building site is appropriate for the uses permitted by the applicable zoning regulations and will not result in the creation of any hazardous or nuisance activities or conditions; and
(2)
Any permitted use existing or to be established on the remainder portion will not create any conditions or situations that may be objectionable, detrimental or incompatible with other permitted uses on surrounding properties.
(Ord. No. 03-03, § 5(18.30.054), 4-16-2003)
(a)
In any district zoned for residential uses when a minimum building site width is required, such required width shall be determined by measuring the distance between the sidelines of the building site along a line parallel to a straight line joining the foremost points of the side property lines, and 20 feet, at the closest point, from the ultimate street right-of-way line. However, in the case of a panhandle building site or a building site not abutting a street or alley and gaining access by an easement, the width of the building site shall be determined by measuring the distance across the building site along a straight line in any direction.
(b)
In any district other than a residential district, when a minimum building site width is required such required width shall be determined by measuring the distance between the points of intersection of the side property lines with the ultimate front street right-of-way line.
(Ord. No. 03-03, § 5(18.30.056), 4-16-2003)
Main buildings and structures, and attached accessory buildings may be constructed or placed on any portion of a building site except within the following areas:
(1)
Within the ultimate right-of-way, as defined, shown as existing on the Master Plan of Arterial Highways or within the ultimate right-of-way, as defined, of any local or private street;
(2)
Within the setback area established by the designation of a building line on a precise plan of highway alignment or an official zoning district map;
(3)
Within the setback area designated by the applicable district regulations, unless otherwise specified by the provisions under exceptions.
(Ord. No. 03-03, § 5(18.30.105), 4-16-2003)
(a)
Building line. The building line for a main building or structure, or attached accessory building may be different than the building setback specified for the zoning district when otherwise permitted by the provisions below through an approved "building line plan" or as provided in the subsequent sections for a particular condition on a building site.
(b)
Building line plan. A building line plan is a precise plan designating the required setbacks for main buildings and structures, accessory buildings and structure or both, for a designated area such as that of an entire tract map. Unless otherwise required, a building line plan may be adopted in compliance with the following provisions:
(1)
A building line plan shall be adopted in the same manner as a use permit after the required public hearings before the Planning Commission in accordance with this title.
(2)
A building line plan may be either graphic or descriptive. It shall include sufficient information to clearly designate the real property and the types of structure it is applicable to and how required setbacks are determined.
Whenever a building line plan has been adopted it shall supersede the provisions of the district setbacks and any further exceptions that follows.
(Ord. No. 03-03, § 5(18.30.110), 4-16-2003)
In the case of a panhandle building site, the building lines shall be set back a minimum of ten feet from any property line, except as otherwise specified in this title.
(Ord. No. 03-03, § 5(18.30.115), 4-16-2003)
When a building site has an average depth of 100 feet or less but more than 75 feet, any required front and rear building line setbacks need not be more than 20 percent of such average depth; and when a building site has an average depth of 75 feet or less, any required front and rear building line setbacks need not be more than 15 percent of such average depth, but in no event shall any required front or rear building line setback be less than five feet.
(Ord. No. 03-03, § 5(18.30.120), 4-16-2003)
When a building site has an average width of less than 50 feet, any required building line setback from the interior side property lines need not be more than ten percent of such average width but in no event less than three feet.
(Ord. No. 03-03, § 5(18.30.125), 4-16-2003)
Where a building site is situated between two building sites, each of which has a main building within 40 feet of said building site which projects into the required front setback area, the front building line for said building site need not be set back further than the average of the setbacks of the two adjoining buildings.
(Ord. No. 03-03, § 5(18.30.130), 4-16-2003)
Where a building site abuts and has a sideline common to a site which has a main building within 40 feet of said common sideline which projects into the required front setback area on one side and abuts a vacant building site, a street or permanent open space on the opposite side, the front building line for said building site need not be set back further than the average of the existing setback on one side and the setback required by the district regulations.
(Ord. No. 03-03, § 5(18.30.135), 4-16-2003)
Balconies, decks, porches, terraces, exterior steps in excess of 30 inches in height and exterior stairways, unroofed, and unenclosed, may project not more than three feet into any required side setback area or the distance required between buildings on the same building site and not more than five feet into any required front or rear setback area, but in no event shall such balconies, decks, porches, terraces, exterior steps or exterior stairways be closer than two feet to any side property line or three feet to any front or rear property line of a building site, when projecting into any required setback area.
(Ord. No. 03-03, § 5(18.30.140), 4-16-2003)
Eaves, cornices, canopies, or cantilevered roofs may project a maximum of 40 percent into any required side setback and 25 percent into any required front or rear setback and 40 percent into the space required between buildings on the same building site, but in no event shall such eaves, cornices, canopies or cantilevered roofs be closer than two feet to any front, side or rear line of the building site when projecting into a required setback area.
(Ord. No. 03-03, § 5(18.30.145), 4-16-2003)
Masonry chimneys, fireplaces, wing walls and other minor architectural features may project into any required front, side or rear setback area a maximum of 24 inches, but in no event shall such chimneys, fireplaces, wing walls and other minor architectural features project into any required setback area so as to be closer than three feet to any property line of the building site.
(Ord. No. 03-03, § 5(18.30.150), 4-16-2003)
Where a building site is situated such that the front, side and rear property lines are not readily determinable, required setbacks shall be as determined by the Director in compliance with the following criterion: Required setbacks shall not permit the placement of buildings on the site in a manner that will constitute a grant of special privileges inconsistent with the limitations placed on other properties in the vicinity and incompatible with surrounding uses.
(Ord. No. 03-03, § 5(18.30.155), 4-16-2003)
The height of any structure shall not exceed the building height limits specified in the district regulations, except as otherwise specified in this title.
(Ord. No. 03-03, § 5(18.30.205), 4-16-2003)
(a)
When a building site slopes in any direction at an average grade of more than ten percent within the front 50 feet of the building site, building height is the vertical distance above an inclined slope to the top of the structure, including screened mechanical and electrical fixtures. The inclined slope is established by enclosing the structure with an imaginary line five feet from the structure, and by assuming that all ground area closer is flat. See diagram for building height.
(b)
In all situations not included within Subsection (a) above, the height is the vertical distance above the ground level of finished grade to the top of the structure. This is established by enclosing the structure with an imaginary line five feet outside of the perimeter of the structure, or at the property line if it is less than five feet from the structure, and determining the average elevation from the imaginary line.
(Ord. No. 03-03, § 5(18.30.210), 4-16-2003)
(a)
Towers, gables, spires, flag poles, and architectural features not for sleeping or eating quarters or for any commercial purpose may exceed the district building height limit by ten feet subject to an approved use permit.
(b)
Elevators, appropriately screened mechanical units, and chimneys which do not exceed ten percent of the roof area, nor exceed the district height limitation by more than eight feet will be permitted.
(Ord. No. 03-03, § 5(18.30.215), 4-16-2003)
(a)
An opaque screen shall be installed and maintained along all district boundaries where the premises abut areas zoned for residential or agricultural uses. A screen shall consist of one or any combination of the following types:
(1)
Walls. A wall shall consist of concrete, stone, brick, tile or similar type of solid masonry material a minimum of four inches thick.
(2)
Berms. A berm shall be not more than 20 feet in width at the base. It shall be constructed of earthen materials and it shall be landscaped.
(3)
Fences, solid. A solid fence shall be constructed of wood or other materials and shall form an opaque screen.
(4)
Fences, open. An open weave or mesh type fence shall be combined with plant materials to form an opaque screen.
(5)
Planting. Plant materials, when used as a screen, shall consist of compact evergreen plants. They shall be of a kind, or used in such a manner, so as to provide screening, having a minimum width of two feet within 18 months after initial installation. Permanent watering facilities shall be provided. If, 18 months after installation, plant materials have not formed an opaque screen or if an opaque screen is not maintained, the Director shall require that either walls, berms, or a solid fence be installed.
(b)
Screen heights shall not be less than six feet in height except where a shorter height is required by this title.
(c)
The permanent installation of chainlink parallel major arterial roads shall be prohibited, unless set back and totally screened from the public right of way. Setback and methods of screening shall be reviewed on a case-by-case basis for aesthetic effectiveness and protection of health and safety.
(d)
Barbed wire, razor wire and similar security treatments on any wall or fence are prohibited, except as permitted under the legal nonconforming section of the title.
(e)
Temporary Fencing parallel to major arterial roads, including chainlink, may be permitted, with a temporary use permit, subject to restrictions established in Section 13.26.180(g)(10) of this title. A temporary fence is defined as a fence erected for a limited and defined period of time, not to exceed 2 years. Permanent or long-term installation of chainlink or similar fences requires a conditional use permit and a finding that the proposed fence is in the interest of protecting public health, safety or welfare.
(f)
No signs shall be permitted on any required screening or temporary fencing except as permitted by this title or as necessary for parking and access restrictions.
(Ord. No. 03-03, § 5(18.30.252), 4-16-2003; Ord. No. 03-08, 11-19-2003)
Landscaping, consisting of trees, shrubs, vines, ground cover, turf, plants or any combination thereof, shall be installed and maintained subject to the following standards:
(1)
Landscaping along all streets and boundaries shall be in compliance with the fences and walls requirements.
(2)
Boundary landscaping is required for a minimum depth equal to the required setback distance or ten feet (whichever is less) along all property lines abutting streets except for the required street openings.
(3)
Any landscaped area shall be separated from an adjacent parking or vehicular area by a wall or curb at least six inches higher than the adjacent parking or vehicular area.
(4)
Landscaping shall be maintained in a neat, clean and healthy condition, and, as applicable, in compliance with Chapter 4.28. This shall include proper pruning; mowing of lawns; weeding; removal of litter; fertilizing and watering as needed and permitted; provision of permanent water facilities as needed and permitted; and replacement of any landscaping as needed and permitted.
(5)
In addition to other projects that may be subject to this section, the following projects shall be subject to these regulations regardless of the district or specific plan in which they are located:
a.
Multifamily projects of five or more units;
b.
Residential planned developments (common areas only); and
c.
Commercial/office projects involving landscaping/irrigation of more than one cumulative acre.
(Ord. No. 03-03, § 5(18.30.254), 4-16-2003; Ord. No. 09-10, § 2, 12-16-2009)
(a)
Permitted accessory uses and structures. In addition to the principal uses and structures expressly included in a zoning district or specific plan, accessory uses and structures which are customarily associated with and subordinate to a permitted principal use on the same building site and which are inconsistent with the purpose and intent of the applicable zoning district or specific plan are permitted. Whenever there is a question as to whether a specific use or structure is permitted as an accessory use, the Director shall make the determination in accordance with this Code.
(b)
Discretionary action required. Accessory uses and structures shall be subject to a discretionary action when one or more of the following apply:
(1)
Required by other zoning regulations; or
(2)
The principal use is subject to a discretionary permit and the accessory structure is over six feet in height. Any such structure may also require a building permit.
(c)
Location of certain attached accessory structures. Accessory structures that are attached to a main building, are enclosed, and are over eight feet in height shall comply with the setback requirements for a main building, except as otherwise provided by this Code.
(d)
Location of other accessory structures. Accessory structures other than in Subsection (c) above shall be permitted anywhere on the building site except within the following areas, unless otherwise provided by this Code.
(1)
Within the ultimate right-of-way.
(2)
Within the area designated on an approved building line plan as a setback area applicable to accessory buildings.
(3)
Within those areas where fences and walls are limited to a maximum height of 3½ feet.
(4)
Within the required front setback area unless provided for by an approved use permit.
(5)
Within the panhandle portion of a panhandle building site.
(e)
Accessory structure height limit. Accessory structures that are within the required setback areas shall be limited to 12 feet in height, unless it is within three feet of a property line, in which case it shall be limited to eight feet in height. However, the height limit may be increased to the maximum allowed by this code with an approved use permit.
(f)
Accessory structure building site coverage within setback areas. Accessory structures shall be limited to the following site coverage within the required setback area:
1 Up to 25 percent building site coverage of the required front setback area shall be allowed for unenclosed structures if provided for by an approved use permit.
(Ord. No. 03-03, § 5(18.30.260), 4-16-2003)
The placement or construction of garages and carports on any building site used for residential purposes, including residential areas within specific plans, shall comply with the setback requirements for a main building except as otherwise follows:
(1)
Garage entry location. When the building line is closer than 20 feet from the ultimate right-of-way of a street or from a common driveway providing primary access and circulation to other dwelling units, attached and detached garages shall be located so that the garage entry is a minimum of 20 feet, at the closest point from the sidewalk (or curbline, if no sidewalk exists). However, if the garage has a roll-up door, that distance may be reduced to 18 feet. See illustration for garage entry location.
_____
_____
(2)
Garage access from alleys and driveways. When alleys, private streets or common driveways are provided specifically as vehicular access to garages and carports and when separate access and circulation systems are provided for pedestrians, guests and emergency vehicles, attached and detached garages and carports may be placed anywhere within the rear setback area to within a minimum of five feet from such alley, private street or common driveway.
(3)
Detached garages and carports. Except as otherwise specified in Subsections (1) and (2) preceding, detached garages and carports may be placed or constructed any place within the required rear or interior side setback area except within those areas where fences and walls are limited to a maximum height of 3½ feet.
(Ord. No. 03-03, § 5(18.30.270), 4-16-2003)
For the purposes of this section, the term "fences and walls" include any type of fence, wall, retaining wall, sound attenuation wall, or screen. Fences/walls shall be in compliance with the following regulations. However, walls that are located within the interior of an approved tract map and are part of the initial development of that tract map shall be exempt from these regulations. Subsections (4) and (5) only, as follows, shall also apply to hedges, or thick growth of shrubs, bushes or trees. Fence/wall heights shall be measured from the base of the fence/wall to the top on the interior or exterior side, whichever is greater. See permitted fence/wall heights illustration.
_____
_____
(1)
Main building area. In the area where a main building may be constructed, the district building height regulations apply.
(2)
Setback for residential areas bordering streets.
a.
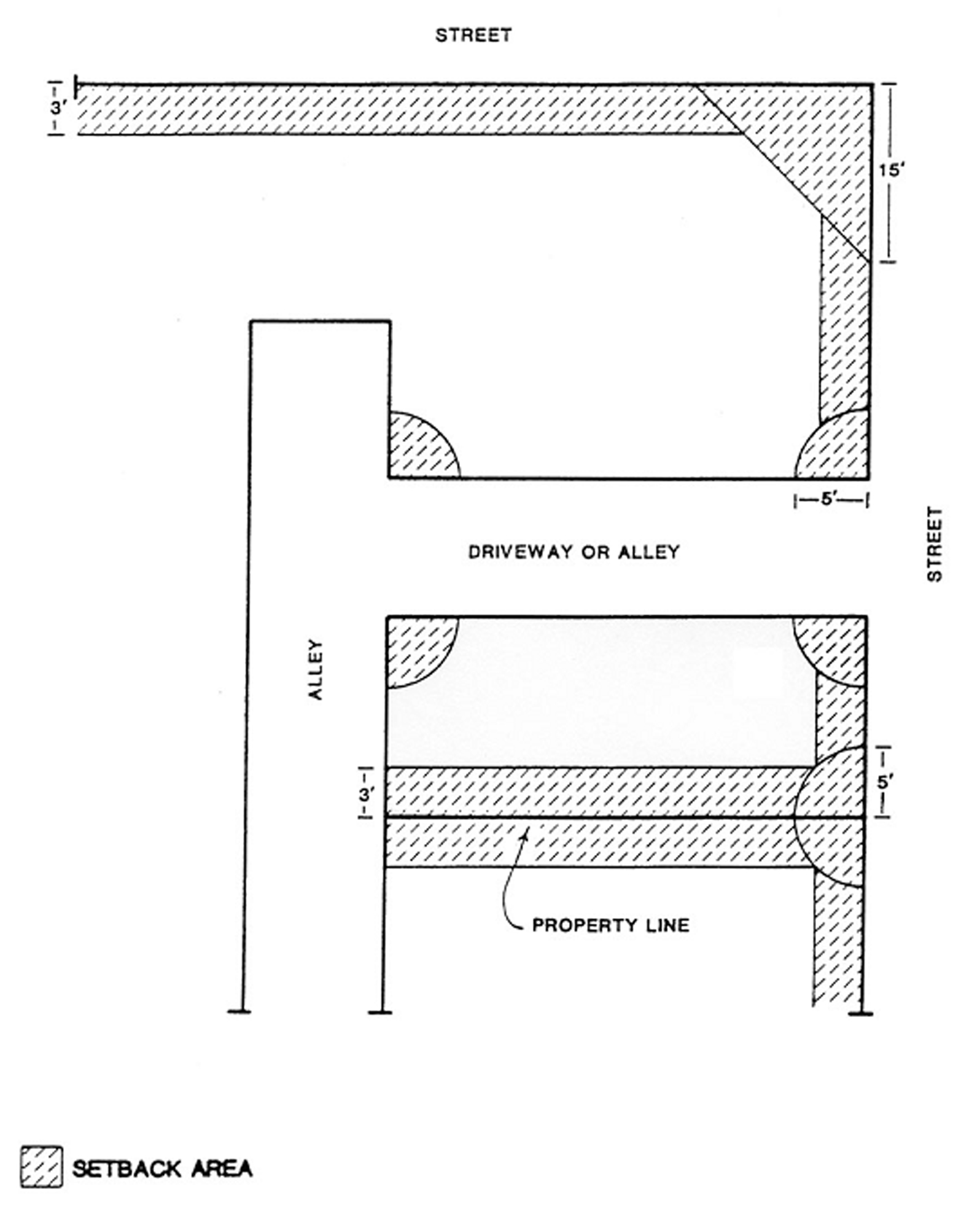
The maximum height shall be 3½ feet within any required front setback area and six feet within any rear or side setback area (through which no vehicular access is taken) adjoining a public street, up to a maximum depth of 20 feet.
b.
That portion of a building site where vehicular access rights have been dedicated to a public agency may have a six feet high fence/wall.
c.
Fences/walls for required sound attenuation which border major arterial highways may be six feet high and as high as eight feet if:
1.
The major arterial is elevated two feet or more above the building site elevation, or
2.
The exterior side measurement of the wall is not more than six feet in height.
(3)
Setback areas not bordering streets. The maximum height shall be six feet within any required front, rear, or side setback area not adjoining a public street. However, where the elevation of an adjoining building site to the side or rear is higher than the base of the fence or wall in the side or rear setback area, the height of the fence or wall may be measured from the elevation of the adjoining building site to the top of the fence or wall. However, in no case shall such a fence or wall exceed eight feet from the base of the fence/wall to the top.
(4)
Access intersection areas. Notwithstanding Subsection (2) above, the maximum height shall be 3½ feet within five feet of the point of intersection of:
a.
An ultimate street right-of-way line and an interior property line;
b.
An ultimate street right-of-way line and the edge of a driveway or vehicular accessway;
c.
An ultimate street right-of-way line and an alley right-of-way line; and
d.
The edge of a driveway or vehicular accessway and an alley right-of-way line.
(5)
Street intersection areas. Notwithstanding Subsection (2) above, the maximum height shall be 3½ feet within the triangular area formed by drawing a straight line between two points located on, and 15 feet distant from, the point of intersection of two ultimate street or highway right-of-way lines extended.
(6)
Modifications permitted. Exceptions and modifications to the fence and wall height provisions may be permitted subject to the approval of a use permit. In addition to the findings required by this Code, the following findings shall also be made prior the approval of a fence or wall height use permit:
a.
The height and location of the fence or wall as proposed will not result in or create a traffic hazard.
b.
The location, size, design and other characteristics of the fence or wall will not create conditions or situations that may be objectionable, detrimental or incompatible with other permitted uses in the vicinity.
(Ord. No. 03-03, § 5(18.30.290), 4-16-2003)
16.- BUILDING SITE REGULATIONS
No building permit and no certificate of use and occupancy shall be issued for a building or use of land until the Director has verified by official records that the parcel of land upon which such building or use of land is to be established is a building site.
(1)
Lawful, nonconforming building sites.
a.
Any parcel of land that was established as a building site by the recordation of a final tract map, a final parcel map, a record of survey recorded pursuant to an approved division of land, a lot line adjustment, a certificate of compliance; or by a deed of conveyance or contract of sale or in any other legal manner recorded prior to establishment of this title, as amended, and which complied with all of the requirements of applicable regulations in effect at the time of recordation in the office of the County Recorder, is considered a building site.
b.
Building sites established by the preceding section that are subsequently reduced in area by rights-of-way or easements that prohibit the surface use of the property may be established as legal building sites if the Director determines that the site will be able to provide a building envelope comparable to similar building sites in the area.
(2)
Creation of building sites. A building site may be created by the recordation of a final tract map, a final parcel map, or a lot line adjustment. The creation of any building site shall conform to the following:
a.
Each building site shall be shown on the recorded document as a numbered lot or parcel.
b.
Each building site shall be of sufficient area and width to comply with the area and width requirements for the zoning district in which it is located.
c.
Each building site shall either:
1.
Abut a public street, having a right of access for vehicles and pedestrians, and enjoy practical and physical access to such street, for a minimum width of 20 continuous feet; or
2.
Have a recorded right of access for vehicles and pedestrians for a minimum continuous width of 20 feet, 16 feet paved, via street or other vehicular accessway, and enjoy practical and physical access, from the building site to a public street.
(3)
Lot line adjustments. Lot line adjustments per the Subdivision Code shall not result in requiring the approval of a variance from the applicable zoning district minimum lot size.
(4)
Building site area.
a.
Building site area shall be calculated by measuring the site horizontally as a level plane. Rights-of-way or easements that prohibit surface use of the site, except easements for open space purposes on single-family lots, shall be excluded from the calculation. The minimum building site area required by the applicable district or planning area regulations shall be undivided and relatively compact although the entire building site may be larger with diffuse parts.
b.
That portion of a panhandle or flag building site that is used for purposes and is less than 40 feet in width shall not be used in calculating the area of the building site.
(Ord. No. 03-03, § 5(18.30.052), 4-16-2003)
(a)
Unimproved building site. If a portion of a building site containing no structures is acquired for public use by condemnation, dedication, purchase or any other means, the status of the remainder of the building site shall be determined as follows:
(1)
If such remainder has 80 percent or more of the area and width required by the district regulations at the time of acquisition, such remainder shall constitute a building site.
(2)
If such remainder has less than 80 percent but not less than 50 percent of the required area or width, or both, but otherwise meets all of the requirements for a building site, the public agency concerned may file an application for a use permit, whether or not the acquisition has been completed, to establish if such remainder shall constitute a building site.
(3)
A property owner may apply for a use permit at any time to establish the status of such remainder.
(b)
Improved building site. If a portion of a building site improved with structures is acquired for public use by condemnation, dedication, purchase or any other means, the status of the remainder of the building site shall be determined as follows:
(1)
If such remainder has less than 80 percent or more of the area and width required by the district regulations at the time of acquisition, such remainder shall constitute a building site.
(2)
If such remainder has less than 80 percent but not less than 50 percent of the required area or width, or both, but otherwise meets all of the requirements for a building site, the public agency concerned may file an application of a use permit, whether or not the acquisition has been completed, to establish if such remainder shall constitute a building site.
(3)
If such remainder has setbacks or distances between buildings that have 80 percent or more of the depth or width, or both, required for each of such spaces, they shall constitute the required spaces.
(4)
If such remainder has setbacks or distances between buildings which have less than 80 percent but not less than 60 percent of the depth or width, or both, required for each of such spaces, the public agency concerned may file an application for a use permit, whether or not the acquisition has been completed, to establish if such spaces shall constitute the required spaces. Furthermore, the public agency concerned may file an application for a use permit, whether or not the acquisition has been completed, to establish yards or distances, between buildings associated with structures to be relocated, consisting of less than 80 percent of the depth or width, or both, required for such space.
(5)
A property owner may apply for a use permit at any time to establish the status of such remainders.
(c)
Conflicts with other requirements. Any conflict with the requirements of the Zoning Code other than those inherent in the preceding Subsections (a) and (b), caused by acquisition for public use by condemnation, dedication, purchase or any other means, shall be subject to the approval by the approving authority. Any use permit application filed pursuant to the provision of this section shall not be approved unless the approving authority finds:
(1)
The remainder of the building site is appropriate for the uses permitted by the applicable zoning regulations and will not result in the creation of any hazardous or nuisance activities or conditions; and
(2)
Any permitted use existing or to be established on the remainder portion will not create any conditions or situations that may be objectionable, detrimental or incompatible with other permitted uses on surrounding properties.
(Ord. No. 03-03, § 5(18.30.054), 4-16-2003)
(a)
In any district zoned for residential uses when a minimum building site width is required, such required width shall be determined by measuring the distance between the sidelines of the building site along a line parallel to a straight line joining the foremost points of the side property lines, and 20 feet, at the closest point, from the ultimate street right-of-way line. However, in the case of a panhandle building site or a building site not abutting a street or alley and gaining access by an easement, the width of the building site shall be determined by measuring the distance across the building site along a straight line in any direction.
(b)
In any district other than a residential district, when a minimum building site width is required such required width shall be determined by measuring the distance between the points of intersection of the side property lines with the ultimate front street right-of-way line.
(Ord. No. 03-03, § 5(18.30.056), 4-16-2003)
Main buildings and structures, and attached accessory buildings may be constructed or placed on any portion of a building site except within the following areas:
(1)
Within the ultimate right-of-way, as defined, shown as existing on the Master Plan of Arterial Highways or within the ultimate right-of-way, as defined, of any local or private street;
(2)
Within the setback area established by the designation of a building line on a precise plan of highway alignment or an official zoning district map;
(3)
Within the setback area designated by the applicable district regulations, unless otherwise specified by the provisions under exceptions.
(Ord. No. 03-03, § 5(18.30.105), 4-16-2003)
(a)
Building line. The building line for a main building or structure, or attached accessory building may be different than the building setback specified for the zoning district when otherwise permitted by the provisions below through an approved "building line plan" or as provided in the subsequent sections for a particular condition on a building site.
(b)
Building line plan. A building line plan is a precise plan designating the required setbacks for main buildings and structures, accessory buildings and structure or both, for a designated area such as that of an entire tract map. Unless otherwise required, a building line plan may be adopted in compliance with the following provisions:
(1)
A building line plan shall be adopted in the same manner as a use permit after the required public hearings before the Planning Commission in accordance with this title.
(2)
A building line plan may be either graphic or descriptive. It shall include sufficient information to clearly designate the real property and the types of structure it is applicable to and how required setbacks are determined.
Whenever a building line plan has been adopted it shall supersede the provisions of the district setbacks and any further exceptions that follows.
(Ord. No. 03-03, § 5(18.30.110), 4-16-2003)
In the case of a panhandle building site, the building lines shall be set back a minimum of ten feet from any property line, except as otherwise specified in this title.
(Ord. No. 03-03, § 5(18.30.115), 4-16-2003)
When a building site has an average depth of 100 feet or less but more than 75 feet, any required front and rear building line setbacks need not be more than 20 percent of such average depth; and when a building site has an average depth of 75 feet or less, any required front and rear building line setbacks need not be more than 15 percent of such average depth, but in no event shall any required front or rear building line setback be less than five feet.
(Ord. No. 03-03, § 5(18.30.120), 4-16-2003)
When a building site has an average width of less than 50 feet, any required building line setback from the interior side property lines need not be more than ten percent of such average width but in no event less than three feet.
(Ord. No. 03-03, § 5(18.30.125), 4-16-2003)
Where a building site is situated between two building sites, each of which has a main building within 40 feet of said building site which projects into the required front setback area, the front building line for said building site need not be set back further than the average of the setbacks of the two adjoining buildings.
(Ord. No. 03-03, § 5(18.30.130), 4-16-2003)
Where a building site abuts and has a sideline common to a site which has a main building within 40 feet of said common sideline which projects into the required front setback area on one side and abuts a vacant building site, a street or permanent open space on the opposite side, the front building line for said building site need not be set back further than the average of the existing setback on one side and the setback required by the district regulations.
(Ord. No. 03-03, § 5(18.30.135), 4-16-2003)
Balconies, decks, porches, terraces, exterior steps in excess of 30 inches in height and exterior stairways, unroofed, and unenclosed, may project not more than three feet into any required side setback area or the distance required between buildings on the same building site and not more than five feet into any required front or rear setback area, but in no event shall such balconies, decks, porches, terraces, exterior steps or exterior stairways be closer than two feet to any side property line or three feet to any front or rear property line of a building site, when projecting into any required setback area.
(Ord. No. 03-03, § 5(18.30.140), 4-16-2003)
Eaves, cornices, canopies, or cantilevered roofs may project a maximum of 40 percent into any required side setback and 25 percent into any required front or rear setback and 40 percent into the space required between buildings on the same building site, but in no event shall such eaves, cornices, canopies or cantilevered roofs be closer than two feet to any front, side or rear line of the building site when projecting into a required setback area.
(Ord. No. 03-03, § 5(18.30.145), 4-16-2003)
Masonry chimneys, fireplaces, wing walls and other minor architectural features may project into any required front, side or rear setback area a maximum of 24 inches, but in no event shall such chimneys, fireplaces, wing walls and other minor architectural features project into any required setback area so as to be closer than three feet to any property line of the building site.
(Ord. No. 03-03, § 5(18.30.150), 4-16-2003)
Where a building site is situated such that the front, side and rear property lines are not readily determinable, required setbacks shall be as determined by the Director in compliance with the following criterion: Required setbacks shall not permit the placement of buildings on the site in a manner that will constitute a grant of special privileges inconsistent with the limitations placed on other properties in the vicinity and incompatible with surrounding uses.
(Ord. No. 03-03, § 5(18.30.155), 4-16-2003)
The height of any structure shall not exceed the building height limits specified in the district regulations, except as otherwise specified in this title.
(Ord. No. 03-03, § 5(18.30.205), 4-16-2003)
(a)
When a building site slopes in any direction at an average grade of more than ten percent within the front 50 feet of the building site, building height is the vertical distance above an inclined slope to the top of the structure, including screened mechanical and electrical fixtures. The inclined slope is established by enclosing the structure with an imaginary line five feet from the structure, and by assuming that all ground area closer is flat. See diagram for building height.
(b)
In all situations not included within Subsection (a) above, the height is the vertical distance above the ground level of finished grade to the top of the structure. This is established by enclosing the structure with an imaginary line five feet outside of the perimeter of the structure, or at the property line if it is less than five feet from the structure, and determining the average elevation from the imaginary line.
(Ord. No. 03-03, § 5(18.30.210), 4-16-2003)
(a)
Towers, gables, spires, flag poles, and architectural features not for sleeping or eating quarters or for any commercial purpose may exceed the district building height limit by ten feet subject to an approved use permit.
(b)
Elevators, appropriately screened mechanical units, and chimneys which do not exceed ten percent of the roof area, nor exceed the district height limitation by more than eight feet will be permitted.
(Ord. No. 03-03, § 5(18.30.215), 4-16-2003)
(a)
An opaque screen shall be installed and maintained along all district boundaries where the premises abut areas zoned for residential or agricultural uses. A screen shall consist of one or any combination of the following types:
(1)
Walls. A wall shall consist of concrete, stone, brick, tile or similar type of solid masonry material a minimum of four inches thick.
(2)
Berms. A berm shall be not more than 20 feet in width at the base. It shall be constructed of earthen materials and it shall be landscaped.
(3)
Fences, solid. A solid fence shall be constructed of wood or other materials and shall form an opaque screen.
(4)
Fences, open. An open weave or mesh type fence shall be combined with plant materials to form an opaque screen.
(5)
Planting. Plant materials, when used as a screen, shall consist of compact evergreen plants. They shall be of a kind, or used in such a manner, so as to provide screening, having a minimum width of two feet within 18 months after initial installation. Permanent watering facilities shall be provided. If, 18 months after installation, plant materials have not formed an opaque screen or if an opaque screen is not maintained, the Director shall require that either walls, berms, or a solid fence be installed.
(b)
Screen heights shall not be less than six feet in height except where a shorter height is required by this title.
(c)
The permanent installation of chainlink parallel major arterial roads shall be prohibited, unless set back and totally screened from the public right of way. Setback and methods of screening shall be reviewed on a case-by-case basis for aesthetic effectiveness and protection of health and safety.
(d)
Barbed wire, razor wire and similar security treatments on any wall or fence are prohibited, except as permitted under the legal nonconforming section of the title.
(e)
Temporary Fencing parallel to major arterial roads, including chainlink, may be permitted, with a temporary use permit, subject to restrictions established in Section 13.26.180(g)(10) of this title. A temporary fence is defined as a fence erected for a limited and defined period of time, not to exceed 2 years. Permanent or long-term installation of chainlink or similar fences requires a conditional use permit and a finding that the proposed fence is in the interest of protecting public health, safety or welfare.
(f)
No signs shall be permitted on any required screening or temporary fencing except as permitted by this title or as necessary for parking and access restrictions.
(Ord. No. 03-03, § 5(18.30.252), 4-16-2003; Ord. No. 03-08, 11-19-2003)
Landscaping, consisting of trees, shrubs, vines, ground cover, turf, plants or any combination thereof, shall be installed and maintained subject to the following standards:
(1)
Landscaping along all streets and boundaries shall be in compliance with the fences and walls requirements.
(2)
Boundary landscaping is required for a minimum depth equal to the required setback distance or ten feet (whichever is less) along all property lines abutting streets except for the required street openings.
(3)
Any landscaped area shall be separated from an adjacent parking or vehicular area by a wall or curb at least six inches higher than the adjacent parking or vehicular area.
(4)
Landscaping shall be maintained in a neat, clean and healthy condition, and, as applicable, in compliance with Chapter 4.28. This shall include proper pruning; mowing of lawns; weeding; removal of litter; fertilizing and watering as needed and permitted; provision of permanent water facilities as needed and permitted; and replacement of any landscaping as needed and permitted.
(5)
In addition to other projects that may be subject to this section, the following projects shall be subject to these regulations regardless of the district or specific plan in which they are located:
a.
Multifamily projects of five or more units;
b.
Residential planned developments (common areas only); and
c.
Commercial/office projects involving landscaping/irrigation of more than one cumulative acre.
(Ord. No. 03-03, § 5(18.30.254), 4-16-2003; Ord. No. 09-10, § 2, 12-16-2009)
(a)
Permitted accessory uses and structures. In addition to the principal uses and structures expressly included in a zoning district or specific plan, accessory uses and structures which are customarily associated with and subordinate to a permitted principal use on the same building site and which are inconsistent with the purpose and intent of the applicable zoning district or specific plan are permitted. Whenever there is a question as to whether a specific use or structure is permitted as an accessory use, the Director shall make the determination in accordance with this Code.
(b)
Discretionary action required. Accessory uses and structures shall be subject to a discretionary action when one or more of the following apply:
(1)
Required by other zoning regulations; or
(2)
The principal use is subject to a discretionary permit and the accessory structure is over six feet in height. Any such structure may also require a building permit.
(c)
Location of certain attached accessory structures. Accessory structures that are attached to a main building, are enclosed, and are over eight feet in height shall comply with the setback requirements for a main building, except as otherwise provided by this Code.
(d)
Location of other accessory structures. Accessory structures other than in Subsection (c) above shall be permitted anywhere on the building site except within the following areas, unless otherwise provided by this Code.
(1)
Within the ultimate right-of-way.
(2)
Within the area designated on an approved building line plan as a setback area applicable to accessory buildings.
(3)
Within those areas where fences and walls are limited to a maximum height of 3½ feet.
(4)
Within the required front setback area unless provided for by an approved use permit.
(5)
Within the panhandle portion of a panhandle building site.
(e)
Accessory structure height limit. Accessory structures that are within the required setback areas shall be limited to 12 feet in height, unless it is within three feet of a property line, in which case it shall be limited to eight feet in height. However, the height limit may be increased to the maximum allowed by this code with an approved use permit.
(f)
Accessory structure building site coverage within setback areas. Accessory structures shall be limited to the following site coverage within the required setback area:
1 Up to 25 percent building site coverage of the required front setback area shall be allowed for unenclosed structures if provided for by an approved use permit.
(Ord. No. 03-03, § 5(18.30.260), 4-16-2003)
The placement or construction of garages and carports on any building site used for residential purposes, including residential areas within specific plans, shall comply with the setback requirements for a main building except as otherwise follows:
(1)
Garage entry location. When the building line is closer than 20 feet from the ultimate right-of-way of a street or from a common driveway providing primary access and circulation to other dwelling units, attached and detached garages shall be located so that the garage entry is a minimum of 20 feet, at the closest point from the sidewalk (or curbline, if no sidewalk exists). However, if the garage has a roll-up door, that distance may be reduced to 18 feet. See illustration for garage entry location.
_____
_____
(2)
Garage access from alleys and driveways. When alleys, private streets or common driveways are provided specifically as vehicular access to garages and carports and when separate access and circulation systems are provided for pedestrians, guests and emergency vehicles, attached and detached garages and carports may be placed anywhere within the rear setback area to within a minimum of five feet from such alley, private street or common driveway.
(3)
Detached garages and carports. Except as otherwise specified in Subsections (1) and (2) preceding, detached garages and carports may be placed or constructed any place within the required rear or interior side setback area except within those areas where fences and walls are limited to a maximum height of 3½ feet.
(Ord. No. 03-03, § 5(18.30.270), 4-16-2003)
For the purposes of this section, the term "fences and walls" include any type of fence, wall, retaining wall, sound attenuation wall, or screen. Fences/walls shall be in compliance with the following regulations. However, walls that are located within the interior of an approved tract map and are part of the initial development of that tract map shall be exempt from these regulations. Subsections (4) and (5) only, as follows, shall also apply to hedges, or thick growth of shrubs, bushes or trees. Fence/wall heights shall be measured from the base of the fence/wall to the top on the interior or exterior side, whichever is greater. See permitted fence/wall heights illustration.
_____
_____
(1)
Main building area. In the area where a main building may be constructed, the district building height regulations apply.
(2)
Setback for residential areas bordering streets.
a.
The maximum height shall be 3½ feet within any required front setback area and six feet within any rear or side setback area (through which no vehicular access is taken) adjoining a public street, up to a maximum depth of 20 feet.
b.
That portion of a building site where vehicular access rights have been dedicated to a public agency may have a six feet high fence/wall.
c.
Fences/walls for required sound attenuation which border major arterial highways may be six feet high and as high as eight feet if:
1.
The major arterial is elevated two feet or more above the building site elevation, or
2.
The exterior side measurement of the wall is not more than six feet in height.
(3)
Setback areas not bordering streets. The maximum height shall be six feet within any required front, rear, or side setback area not adjoining a public street. However, where the elevation of an adjoining building site to the side or rear is higher than the base of the fence or wall in the side or rear setback area, the height of the fence or wall may be measured from the elevation of the adjoining building site to the top of the fence or wall. However, in no case shall such a fence or wall exceed eight feet from the base of the fence/wall to the top.
(4)
Access intersection areas. Notwithstanding Subsection (2) above, the maximum height shall be 3½ feet within five feet of the point of intersection of:
a.
An ultimate street right-of-way line and an interior property line;
b.
An ultimate street right-of-way line and the edge of a driveway or vehicular accessway;
c.
An ultimate street right-of-way line and an alley right-of-way line; and
d.
The edge of a driveway or vehicular accessway and an alley right-of-way line.
(5)
Street intersection areas. Notwithstanding Subsection (2) above, the maximum height shall be 3½ feet within the triangular area formed by drawing a straight line between two points located on, and 15 feet distant from, the point of intersection of two ultimate street or highway right-of-way lines extended.
(6)
Modifications permitted. Exceptions and modifications to the fence and wall height provisions may be permitted subject to the approval of a use permit. In addition to the findings required by this Code, the following findings shall also be made prior the approval of a fence or wall height use permit:
a.
The height and location of the fence or wall as proposed will not result in or create a traffic hazard.
b.
The location, size, design and other characteristics of the fence or wall will not create conditions or situations that may be objectionable, detrimental or incompatible with other permitted uses in the vicinity.
(Ord. No. 03-03, § 5(18.30.290), 4-16-2003)