Zoneomics Logo
search icon

North Branch City Zoning Code

ARTICLE X

FENCING, SCREENING AND LANDSCAPING

Sec 66-970 Purpose

  1. The purpose of this article is to clearly express the city's intent for all properties to be landscaped and maintained with great care. Properties shall be landscaped to express sensitivity to environmental conditions as well as aesthetic needs of the general public.
  2. The quality and specifications identified in this article are intended to guide landscaping within the residential, commercial and industrial districts.
  3. The preservation of desirable vegetation is a goal which should be addressed prior to the construction or expansion of an existing use.
  4. To reduce the incompatibility between zoning districts of different intensities and type, and lessen the adverse impact of more intense land uses upon residential areas.

(Code 1996, § 17.46.010)

Sec 66-971 Definitions

For the purposes of this article, the following words and terms are defined as follows:

Deciduous means plants, which lose foliage and become dormant during winter months.

Coniferous trees are large evergreens, which reach mature heights of 50 feet or more.

Evergreens means a plant, which retains its green color year-round and does not drop its fronds or needles in the winter.

Ground cover means plants which are used for accents and/or soil stabilization and are typically 24 inches or less in height.

Overstory trees means large deciduous shade producing trees with a mature height over 30 feet.

Ornamental trees means small deciduous shade producing trees with a mature height less than 30 feet.

Planting schedule means a listing of all plants to be installed: identifying their common name, botanical name, plant size, root type, and quantity to be installed.

(Code 1996, § 17.46.020; Ord. No. 153-10, § 1, 8-9-2010)

Sec 66-972 Size And Condition

  1. Underground utilities. Prior to the commencement of any digging, grading, or planting, all underground utilities must be located. The contractor is responsible for all damage, repairs, and delay of service as a result of damage to any above or below ground utilities.
  2. Size requirements. For all new developments, remodeling, or construction of new expansions the following minimum sizes shall be required at the time of planting and apply to all zoning district. Larger plants may be used or specified at any time.
    1. Overstory trees = 2½ inches in diameter.
    2. Ornamental trees = 1½ inches in diameter.
    3. Evergreen trees = 5 feet in height.
  3. Planting schedules. All plants to be installed shall be identified and approved by the city prior to installation. Plants shall be identified by a planting schedule, which includes:
    1. Quantity to be installed;
    2. Common name;
    3. Botanical name;
    4. Plant size;
    5. Root type (B&B, container, bare root).
  4. Plant location. No plants except for flowers, ground covers, or vines shall be placed within two feet of any building, driveway, or parking area unless specifically noted on the landscape plan.
  5. Staking trees. The owner is responsible for keeping trees in a plumb position. When staking or guying is required, it shall occur so as not to create any hazards or unsightly obstacles. All wires shall be encased in hose to prevent tree damage.
  6. Plant hardiness. All plants specified and installed must be nursery grown and identified as hardy plants, which are appropriate for all seasonal conditions. Plants must be sound, healthy, vigorous, and free of disease, insect eggs, and larvae.

(Code 1996, § 17.46.030)

Sec 66-973 Fencing And Screening

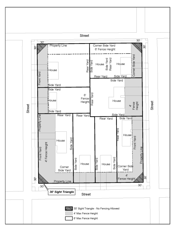
  1. No fence located on any residential property shall exceed six (6) feet in height. If the fence is constructed using pre-assembled panels that are six (6) feet in height, the fence may be placed up to an average of four (4) inches off the ground to allow for maintenance of vegetation and will still be considered a six (6) foot, four (4) inches from the top of the ground. Figure A
  2. Front yard ad corner side yard residential properties.
    1. No fence in the front yard of any residential property shall exceed four (4) feet in height.
    2. No fence in the corner side yard of any residential property shall exceed four (4) feet in height, except if:
      1. the fence is located at the corner yard building setback line for that zoning district, or
      2. the adjacent lot to the corner lot fence is not a front yard: See Figure A.
  3. All commercial and industrial principal and accessory uses which are situated within ten feet of a residential zoning district shall be screened from such zone by a wall or fence of not less than 90 percent opacity at least six feet in height or up to eight feet in height above the level of the residential zone property at the district boundary. Walls or fences over six feet in height shall be set back from the property line at least five feet. In the setback area there shall be planted a combination of coniferous and deciduous plants in order to soften the appearance of the fence or wall for the affected residential area.
  4. All screening devices in all districts shall be designed so that they are architecturally harmonious, as determined by the planning director or planning commission, with the principal structures on the site and adjacent properties and they shall be properly maintained so as not to become unsightly, hazardous, or less opaque than when originally constructed.
  5. All screening required by the provisions of this article shall be defined as follows:
    1. A green belt planting strip consisting of vegetation cover of sufficient width and density all year round to provide an effective screen; or
    2. A fence constructed of masonry, brick, wood, or steel which complies with other provisions of this article; or
    3. Earth moundings or berms may be used, but not for more than three feet of the required screening height. All berms shall be sodded or planted.
  6. No commercial use shall erect a fence for screening unless it is specifically required by this article or necessary for safety purposes when approved by the city council with considerations made only for any pedestrian access needs.
  7. Except as provided in other sections of this article, fences may be placed along the lot line upon mutual written consent of abutting property owner(s) and the filing with the city a certificate of survey indicating the boundary lines.
  8. A building permit is required for all fences over seven feet and design information and structural engineering will also be required.
  9. The height shall be measured from the average point between the highest and lowest grade.
  10. Fences may not be placed within a drainage and utility easement that is occupied by any utility, without a prior recorded fence agreement with written approval by the city
    public works director.
  11. Barbed Wire Fences. Barbed wire, razor wire or similar fences shall not be installed within the city, except for security fences in commercial and industrial zones, public facilities, or farm fences constructed to contain livestock.
  12. Fences shall be located entirely upon the private property of the person constructing or causing the construction of such fence, unless the owner of the adjoining property agrees, in writing, that such fence may be erected on the division line of the respective properties. The City may require the owner of the property upon which a fence exists to establish the boundary lines of the property by a survey thereof.
  13. Fences shall be located a minimum setback distance of two (2) feet from public rights-of-way.
  14. The finished side of the fence shall face neighboring properties or the street. The finished side is described as the side of the fence without exposed supports or posts.
  15. No fence, wall, shrubbery or other obstruction shall be permitted within the triangular area formed at the intersection of any street right-of-way lines by a straight line drawn between said right-of-way lines at a distance along each line of thirty (30) feet from their point of intersection.
  16. All swimming pools or portable swimming pools of a water depth greater than 18 inches shall be protected by a fence of not less than four feet in height. All gates shall have a self-closing and self latching latch installed on the pool side of the fence. All fences shall be nonclimbable and shall have intermediate rails or ornamental pattern such that a sphere four inches in diameter cannot pass through.

(Code 1996, § 17.46.040; Ord. No. 128-09, §§ 1, 2, 2-9-2009; Ord. No. 164-11, § 1, 9-24-2011)

HISTORY
Amended by Ord. 313-21 on 3/23/2021
Amended by Ord. 315-21 on 7/13/2021
Amended by Ord. 339-22 on 7/12/2022
Amended by Ord. 374-24 on 6/11/2024

Sec 66-974 Landscaping

  1. Requirements. All exposed ground areas surrounding or within a principal or accessory use including streets, boulevards (which are not devoted to drives), sidewalks, patios, or other such uses shall be landscaped. All landscaped areas shall be kept neat, clean, and uncluttered.
    1. Landscaping required by the provisions of this article shall be defined as follows:
      1. Single-family homes, manufactured home park and apartment dwelling structures shall contain as a minimum: one tree per dwelling unit. Ornamental trees do not count for this requirement.
      2. Nonresidential uses shall contain at a minimum the greater of:
        1. One tree per 1,000 square feet of gross building floor area;
        2. One tree per 50 lineal feet of site perimeter.
      3. The full requirements of the landscaping ordinance shall not apply to land zoned CBD central business district. The planning director shall review individual sites zoned CBD central business district to determine the extent to which it is possible for the requirements of this chapter to apply to the parcel.
      4. The complement of trees fulfilling the requirements of this section shall be not less than 25 percent deciduous and not less than 25 percent coniferous.
      5. Existing trees on a lot may count towards the required number of trees provided the size and type are consistent with the requirements of this article and they are shown and labeled as such on the site plan.
      6. Each two ornamental trees may fulfill the requirement of one tree as required by this section.
  2. Erosion. Land subject to soil erosion shall be landscaped.
  3. Footage. For industrial and business uses or multi-family housing project of three or more units, if any parking is provided, in the area between the parking lot and a public right-of-way there shall be a depth of at least ten feet of landscaped area in an industrial or business district and at least 20 feet of landscaped area in residential zone.
  4. Screening. Exterior storage, where permitted, shall be subject to proper screening as approved by the planning director.
  5. Surface water ponding. Natural impondment areas shall be retained as much as possible, or if necessary, enlarged or modified as directed by the city engineer or as recommended by the planning agency and approved by the city council to reduce the site runoff.
  6. Removal of tree cover. The developer of the site shall not remove more than 50 percent of the existing tree cover (trees of six inch diameter or larger) or as approved by the city council. As part of the site plan review process or subdivision application, a tree preservation plan shall be submitted for all new and/or expanded subdivision, multiple-family residential, manufactured home parks, commercial, industrial and institutional uses. In the event a tree designated for preservation is removed or destroyed in excess of the number detailed in the tree preservation plan, then it shall be replaced with a new tree or the equivalent fee paid to the city ($300.00/tree) so the city can purchase trees to plant in the area.
  7. Prohibited trees. It shall be unlawful to plant any of the following trees within the city:
    1. Ginko (Maidenhair tree female only);
    2. Boxelder (ash-leaved maple);
    3. Eastern cottonwood;
    4. Lombardy poplar.
  8. Appropriate sites. All tree species shall be indigenous to the appropriate hardiness zone and physical characteristics of the site.
  9. Time requirements.
    1. Provisions of this article shall be carried out within one year of the issuance of the certificate of occupancy for single-family lots.
    2. Multifamily residential, and business, industrial use lots, new construction. Compliance with this chapter shall be completed prior to issuance of certificate of occupancy unless a letter of credit is submitted to the city, in an amount approved by the city, which shall include the estimated cost of the required landscaping and its installation.
    3. Existing multifamily residential, and business, industrial use expansion. Any building or parking lot expansion increasing the square footage of the building, parking lot, or both, shall result in the lot being brought further towards compliance with this article.
    4. Any lot which does not have 50 percent of the number of trees required by this article at the time of site plan submittal or construction commencement, whichever occurs first, shall install at least the greater of:
      1. The number of trees required to bring the lot into 50 percent compliance with the required number of trees; or
      2. Doubling the number of existing trees on site so as to exceed 50 percent.
    5. Any lot which has at least 50 percent of the required number of trees required by this article at the time of site plan submittal or construction commencement, whichever occurs first, shall install at least the number of trees required to bring the lot into full compliance with the required number of trees. Compliance with this chapter shall be completed prior to issuance of certificate of occupancy unless a letter of credit is submitted to the city, in an amount approved by the city, which shall be for the estimated cost of the required landscaping and its installation. If the work is not completed within one year of the issuance of the certificate of occupancy then the letter of credit shall be drawn upon and the city shall have the work completed.
  10. Developer's agreement. For industrial and business uses and housing projects of three or more units, the city council may require that an agreement be signed by the developer or owner which guarantees that certain improvements judged essential to the public interest and specified in the site plan are carried out within a specified time period.
  11. Permit. Proposals for landscaping and site plans regarding landscaping shall be submitted with the building permit application.

(Code 1996, § 17.46.050)

HISTORY
Amended by Ord. 255-17 on 6/13/2017

Sec 66-975 Permits And Fees

Permits are required for all fences except those in an AG zone, for all agricultural uses in other zones, and fences under four feet in height not placed in the required setback area. Permit fees shall be set by city council resolution from time to time.

(Code 1996, § 17.46.060)

313-21

315-21

339-22

374-24

255-17