OFF-STREET PARKING AND OFF-STREET LOADING
It is the intent of this section to assure that adequate off-street parking is provided with the construction, alteration, remodeling, or change of use of any building or change in the use of land.
The off-street parking and off-street loading facilities, whether they are principal uses, accessory uses, or a minimum requirement for the initiation, enlargement, or change of use, shall meet the requirements of this chapter as follows:
A.
For all buildings and structures erected and all uses of land established after the effective date of this Code, parking and loading facilities shall be provided as required by the applicable use unit.
B.
When the intensity of use of any building, structure, or premises shall be increased through the addition of dwelling units, floor area, seating capacity, or other units of measurement specified herein for required parking or loading facilities, parking and loading facilities as required herein shall be provided for such increase in intensity of use.
C.
Whenever the existing use of a building or structure shall hereafter be changed to a new use, parking and/or loading facilities shall be provided as required for such new use. However, if the building or structure was erected prior to the effective date of this Code, additional parking and/or loading facilities are mandatory only in the amount by which the requirements for the new use would exceed those for the existing use, if the latter were subject to the parking and loading provisions of this Code.
D.
Accessory off-street parking and loading facilities in existence on the effective date of this Code and located on the same lot as the building or use served shall not hereafter be reduced below, or if already less than, shall not be further reduced below the requirements for a similar new building or use under the provisions of this Code.
E.
Any existing building or use that is enlarged, structurally altered, or remodeled to the extent of increasing or changing the use by more than fifty (50) percent as it existed at the effective date of this Code shall be accompanied by off-street parking for the entire building or use in accordance with the off-street parking regulations set forth in this section. When enlargement, structural alteration, or remodeling is to the extent that the use is not increased or changed by more than fifty (50) percent, additional off-street parking shall only be required for the increased or changed floor area or use.
A.
Off-street parking and off-street loading facilities shall not occupy required livability space. Space allocated to any required off-street loading berth shall not be used to satisfy the space requirements for any off-street parking facilities. Space allocated to any required off-street parking shall not be used to satisfy the space requirements of any off-street loading facilities.
B.
Within the front and exterior side yards in the RM Districts, except RM-T, not more than one (1) vehicle shall be parked for each six hundred (600) square feet of area contained in the front or exterior side yards.
C.
Required off-street parking spaces and required off-street loading berths shall not be used for the storage, sales, dismantling, or servicing of any vehicle, equipment, materials, or supplies.
D.
Required off-street parking spaces shall be located on the same lot, tract, parcel, or premises as the use being served or on other property of the same or less restrictive zoning classification that the owner of the premises being serviced has a continuing right to use for parking. When the required off-street parking spaces are not located on the same lot, tract, parcel, or premises being served, the distance from the parking lot to an entrance to the building or use shall not exceed five hundred (500) feet in distance, measured along the shortest available pedestrian route with public access.
E.
Required enclosed off-street parking and loading areas shall meet the bulk and area requirements of the use district in which located, except that enclosed off-street parking and loading areas which are required shall not be included in the computation of permitted floor area.
F.
The capacity of an off-street parking area shall be the number of parking spaces having required dimensions (see Tables 2 and 3) located thereon in such a manner that each space can be entered without passing through another space.
G.
Required off-street parking in commercial, office, industrial and multi-family developments other than townhouses, zones shall be so arranged that no maneuvering incidental to parking movements takes place on the public street.
H.
The number of off-street parking spaces required for each building or use shall be determined by reference to the appropriate Use Unit (1—27) within which the proposed use is classified. Where several different property uses will share a joint parking area, the parking requirements shall be computed based upon the overall development. For any use not listed, or where the listed regulations are not applicable in the judgment of the staff, the parking requirements shall be determined by staff. Computations of required parking spaces by staff shall be final.
I.
Lighting used to illuminate an off-street parking area, if an, shall be by constant light and shall be so arranged as to direct the light away from properties within an R District which do not contain uses for which the parking is being provided.
J.
Off-street parking areas, including driveways used for ingress and egress, shall be surfaced with a dust free all-weather material. Surfacing shall be completed prior to the initiation of the use.
K.
Driveways for ingress and egress to off-street parking and loading areas shall have a maximum width of twenty-five (25) feet measured at the property line, driveways in R districts shall have five (5) foot radius curb returns, driveways in O, C or I districts shall have a maximum burb return radius of fifteen (15) feet.
A.
Off-street loading areas shall not be located within fifty (50) feet of any abutting property which is within an R district unless it is wholly within an enclosed building or screened on all sides abutting the R district by a screening wall or fence.
B.
Unenclosed off-street parking areas which are principal uses shall be screened by the erection of a screening wall or fence on the lot line or lines in common with an R district. Unenclosed off-street parking areas, containing six (6) or more spaces, which are accessory to uses not required to provide screening on the lot line or lines in common with an RE or RS district provided that if the parking area is located more than fifty (50) feet from the RE or RS lot line or lines the screening requirements shall not apply.
C.
Unenclosed off-street parking and loading areas shall be setback from abutting streets as set forth in Table 1.
Table 1
Off-Street Parking and Loading Area Setbacks from Centerline of Abutting Streets*
*If the right-of-way width designated on the major street plan exceeds fifty (50) feet, add one-half (½) of the amount by which the designated right-of-way exceeds fifty (50) feet.
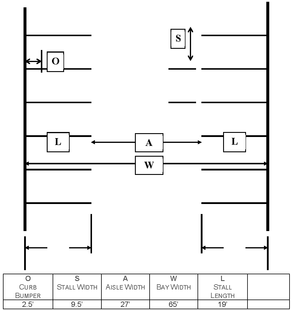
The design and dimensions of off-street parking areas shall be in accordance with the provisions of the following tables of minimum dimensions:
Figure 1
Minimum Required Dimensions for 90º Parking
Figure 2
Minimum Required Dimensions for Angle Parking*
Off-street parking spaces shall be clearly marked according to the standard stall layout as shown in Figures 1 or 2 below. Parking spaces abutting an adjoining property line or street right-of-way shall be provided with wheel guards or bumper guards so beyond the property line, when wheel guards are used, they shall be centered at least two and one-half (2.5) feet from the property line for ninety (90) degree parking, and two and three-tenths (2.3) feet for sixty (60) degree parking, and two (2) feet for forty-five (45) degree parking.
Pedestrian access to buildings shall be provided from right-of-way and parking areas by means of a pathway leading to at least one public entrance. Such pathway hall be clear of any and all obstructions and any parking spaces shall be designed so as not to permit any portion of a vehicle to obstruct the sidewalk. Where curbs exist along such pathways, as between a parking lot surface and sidewalks surface, inclined curb approaches or curb cuts having a gradient of not more than one (1) foot in twelve (12) feet and width of not less than four (4) feet shall be provided to access by wheelchair.
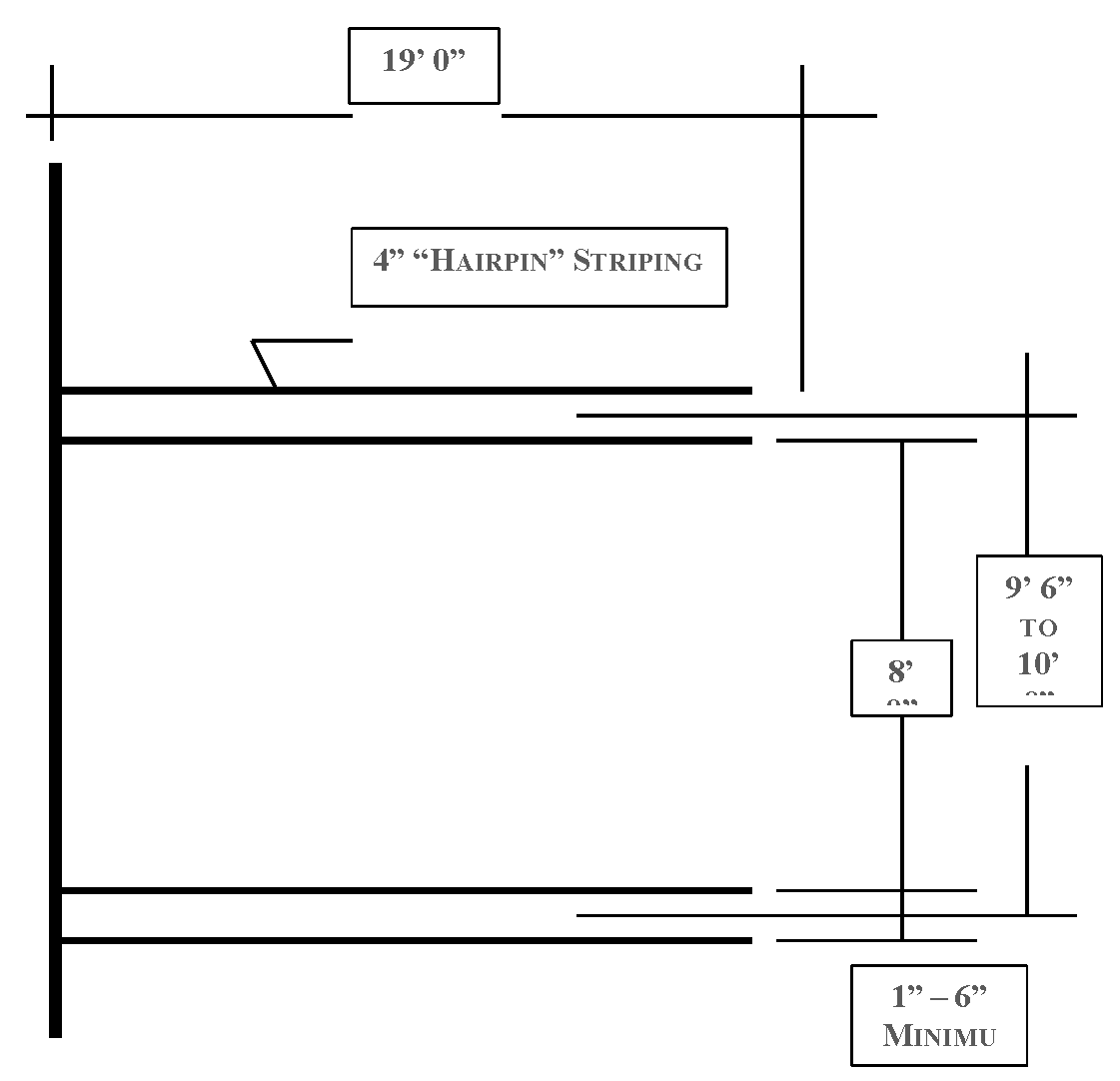
Figure 3
Standard Stall Layout and Striping
A parking lot servicing each entrance pathway shall have a number of level parking spaces, as set forth in the following table, identified by above-grade signs as being reserved for the physically handicapped persons; provided that a maximum of two (2) handicapped spaces shall be required for industrial uses in industrial districts. Each parking space so reserved shall not be less than twelve (12) feet in width.
Table 2
Parking Spaces for the Handicapped
Parking spaces for he physically handicapped shall be located as close as possible to elevators, ramps, walkways and entrances. Parking spaces for the physically handicapped shall be located so that such persons are not compelled to wheel of to walk behind parked cars to reach entrances, ramps walkways and elevators.
A.
Off-street loading regulations. The intent of this section is to ensure that an adequate off-street loading area is provided with the construction, alteration, or change of use of any business building or structure, or with any change in land use.
1.
The owner and the occupier of any property upon which a business is located shall provide loading and unloading as determined by reference to the appropriate Use Unit (1—27) within which the proposed use is classified.
2.
Any person desiring a building permit for the construction, alteration, or change of use of the land or any business building or structure shall submit a site plan to the building official designating the number, dimensions and locations of all loading areas and all proposed avenues of ingress and egress to the property from adjacent public thoroughfares. The building official shall not issue such permit if it is determined that the proposed loading and unloading facilities will present a direct or indirect hazard to vehicular or pedestrian traffic.
B.
Minimum required design criteria for off-street loading spaces.
1.
Unless otherwise specified, a required off-street loading berth shall be at least ten (10) feet in width, thirty (30) feet in length, exclusive of aisles, and shall have a vertical clearance of at least fourteen (14) feet.
2.
Required off-street loading berths shall be provided access to and from a public street or alley by an access drive of at least fifteen (15) feet in width designed to permit convenient access to the berth by semi-trailer trucks.
3.
Off-street loading areas, including driveways used for ingress and egress, shall be surfaced with a dust free all-weather material.
4.
Lighting used to illuminate an off-street loading area, if any, shall be by constant light and shall be so arranged as to direct the light way from properties within an R district which do not contain uses for which the loading area is being provided.
Any person establishing an off-street parking facility or applying for a building permit for construction, reconstruction, or alteration of the use of any building, other than a single-family residence shall submit to the planning staff a site plan for review as per Sections 660.2 and 660.3 which are also applicable here.
OFF-STREET PARKING AND OFF-STREET LOADING
It is the intent of this section to assure that adequate off-street parking is provided with the construction, alteration, remodeling, or change of use of any building or change in the use of land.
The off-street parking and off-street loading facilities, whether they are principal uses, accessory uses, or a minimum requirement for the initiation, enlargement, or change of use, shall meet the requirements of this chapter as follows:
A.
For all buildings and structures erected and all uses of land established after the effective date of this Code, parking and loading facilities shall be provided as required by the applicable use unit.
B.
When the intensity of use of any building, structure, or premises shall be increased through the addition of dwelling units, floor area, seating capacity, or other units of measurement specified herein for required parking or loading facilities, parking and loading facilities as required herein shall be provided for such increase in intensity of use.
C.
Whenever the existing use of a building or structure shall hereafter be changed to a new use, parking and/or loading facilities shall be provided as required for such new use. However, if the building or structure was erected prior to the effective date of this Code, additional parking and/or loading facilities are mandatory only in the amount by which the requirements for the new use would exceed those for the existing use, if the latter were subject to the parking and loading provisions of this Code.
D.
Accessory off-street parking and loading facilities in existence on the effective date of this Code and located on the same lot as the building or use served shall not hereafter be reduced below, or if already less than, shall not be further reduced below the requirements for a similar new building or use under the provisions of this Code.
E.
Any existing building or use that is enlarged, structurally altered, or remodeled to the extent of increasing or changing the use by more than fifty (50) percent as it existed at the effective date of this Code shall be accompanied by off-street parking for the entire building or use in accordance with the off-street parking regulations set forth in this section. When enlargement, structural alteration, or remodeling is to the extent that the use is not increased or changed by more than fifty (50) percent, additional off-street parking shall only be required for the increased or changed floor area or use.
A.
Off-street parking and off-street loading facilities shall not occupy required livability space. Space allocated to any required off-street loading berth shall not be used to satisfy the space requirements for any off-street parking facilities. Space allocated to any required off-street parking shall not be used to satisfy the space requirements of any off-street loading facilities.
B.
Within the front and exterior side yards in the RM Districts, except RM-T, not more than one (1) vehicle shall be parked for each six hundred (600) square feet of area contained in the front or exterior side yards.
C.
Required off-street parking spaces and required off-street loading berths shall not be used for the storage, sales, dismantling, or servicing of any vehicle, equipment, materials, or supplies.
D.
Required off-street parking spaces shall be located on the same lot, tract, parcel, or premises as the use being served or on other property of the same or less restrictive zoning classification that the owner of the premises being serviced has a continuing right to use for parking. When the required off-street parking spaces are not located on the same lot, tract, parcel, or premises being served, the distance from the parking lot to an entrance to the building or use shall not exceed five hundred (500) feet in distance, measured along the shortest available pedestrian route with public access.
E.
Required enclosed off-street parking and loading areas shall meet the bulk and area requirements of the use district in which located, except that enclosed off-street parking and loading areas which are required shall not be included in the computation of permitted floor area.
F.
The capacity of an off-street parking area shall be the number of parking spaces having required dimensions (see Tables 2 and 3) located thereon in such a manner that each space can be entered without passing through another space.
G.
Required off-street parking in commercial, office, industrial and multi-family developments other than townhouses, zones shall be so arranged that no maneuvering incidental to parking movements takes place on the public street.
H.
The number of off-street parking spaces required for each building or use shall be determined by reference to the appropriate Use Unit (1—27) within which the proposed use is classified. Where several different property uses will share a joint parking area, the parking requirements shall be computed based upon the overall development. For any use not listed, or where the listed regulations are not applicable in the judgment of the staff, the parking requirements shall be determined by staff. Computations of required parking spaces by staff shall be final.
I.
Lighting used to illuminate an off-street parking area, if an, shall be by constant light and shall be so arranged as to direct the light away from properties within an R District which do not contain uses for which the parking is being provided.
J.
Off-street parking areas, including driveways used for ingress and egress, shall be surfaced with a dust free all-weather material. Surfacing shall be completed prior to the initiation of the use.
K.
Driveways for ingress and egress to off-street parking and loading areas shall have a maximum width of twenty-five (25) feet measured at the property line, driveways in R districts shall have five (5) foot radius curb returns, driveways in O, C or I districts shall have a maximum burb return radius of fifteen (15) feet.
A.
Off-street loading areas shall not be located within fifty (50) feet of any abutting property which is within an R district unless it is wholly within an enclosed building or screened on all sides abutting the R district by a screening wall or fence.
B.
Unenclosed off-street parking areas which are principal uses shall be screened by the erection of a screening wall or fence on the lot line or lines in common with an R district. Unenclosed off-street parking areas, containing six (6) or more spaces, which are accessory to uses not required to provide screening on the lot line or lines in common with an RE or RS district provided that if the parking area is located more than fifty (50) feet from the RE or RS lot line or lines the screening requirements shall not apply.
C.
Unenclosed off-street parking and loading areas shall be setback from abutting streets as set forth in Table 1.
Table 1
Off-Street Parking and Loading Area Setbacks from Centerline of Abutting Streets*
*If the right-of-way width designated on the major street plan exceeds fifty (50) feet, add one-half (½) of the amount by which the designated right-of-way exceeds fifty (50) feet.
The design and dimensions of off-street parking areas shall be in accordance with the provisions of the following tables of minimum dimensions:
Figure 1
Minimum Required Dimensions for 90º Parking
Figure 2
Minimum Required Dimensions for Angle Parking*
Off-street parking spaces shall be clearly marked according to the standard stall layout as shown in Figures 1 or 2 below. Parking spaces abutting an adjoining property line or street right-of-way shall be provided with wheel guards or bumper guards so beyond the property line, when wheel guards are used, they shall be centered at least two and one-half (2.5) feet from the property line for ninety (90) degree parking, and two and three-tenths (2.3) feet for sixty (60) degree parking, and two (2) feet for forty-five (45) degree parking.
Pedestrian access to buildings shall be provided from right-of-way and parking areas by means of a pathway leading to at least one public entrance. Such pathway hall be clear of any and all obstructions and any parking spaces shall be designed so as not to permit any portion of a vehicle to obstruct the sidewalk. Where curbs exist along such pathways, as between a parking lot surface and sidewalks surface, inclined curb approaches or curb cuts having a gradient of not more than one (1) foot in twelve (12) feet and width of not less than four (4) feet shall be provided to access by wheelchair.
Figure 3
Standard Stall Layout and Striping
A parking lot servicing each entrance pathway shall have a number of level parking spaces, as set forth in the following table, identified by above-grade signs as being reserved for the physically handicapped persons; provided that a maximum of two (2) handicapped spaces shall be required for industrial uses in industrial districts. Each parking space so reserved shall not be less than twelve (12) feet in width.
Table 2
Parking Spaces for the Handicapped
Parking spaces for he physically handicapped shall be located as close as possible to elevators, ramps, walkways and entrances. Parking spaces for the physically handicapped shall be located so that such persons are not compelled to wheel of to walk behind parked cars to reach entrances, ramps walkways and elevators.
A.
Off-street loading regulations. The intent of this section is to ensure that an adequate off-street loading area is provided with the construction, alteration, or change of use of any business building or structure, or with any change in land use.
1.
The owner and the occupier of any property upon which a business is located shall provide loading and unloading as determined by reference to the appropriate Use Unit (1—27) within which the proposed use is classified.
2.
Any person desiring a building permit for the construction, alteration, or change of use of the land or any business building or structure shall submit a site plan to the building official designating the number, dimensions and locations of all loading areas and all proposed avenues of ingress and egress to the property from adjacent public thoroughfares. The building official shall not issue such permit if it is determined that the proposed loading and unloading facilities will present a direct or indirect hazard to vehicular or pedestrian traffic.
B.
Minimum required design criteria for off-street loading spaces.
1.
Unless otherwise specified, a required off-street loading berth shall be at least ten (10) feet in width, thirty (30) feet in length, exclusive of aisles, and shall have a vertical clearance of at least fourteen (14) feet.
2.
Required off-street loading berths shall be provided access to and from a public street or alley by an access drive of at least fifteen (15) feet in width designed to permit convenient access to the berth by semi-trailer trucks.
3.
Off-street loading areas, including driveways used for ingress and egress, shall be surfaced with a dust free all-weather material.
4.
Lighting used to illuminate an off-street loading area, if any, shall be by constant light and shall be so arranged as to direct the light way from properties within an R district which do not contain uses for which the loading area is being provided.
Any person establishing an off-street parking facility or applying for a building permit for construction, reconstruction, or alteration of the use of any building, other than a single-family residence shall submit to the planning staff a site plan for review as per Sections 660.2 and 660.3 which are also applicable here.