06 - DEVELOPMENT STANDARDS
No Building Permit shall be issued for the construction of any Building or Structure located on a Lot or Parcel that does not conform to these regulations.
A.
The Applicant shall prepare Site Development plans consistent with the standards contained herein and shall pay for the design, evaluation, construction, and inspection of any Public Improvements required.
B.
No one shall alter any terrain or remove any vegetation from the proposed Development Site or engage in any Site Development until an Applicant has obtained the necessary Development Permits.
C.
The Community Development Department shall review submitted plans for:
1.
Design;
2.
Conformity to the Master Plans;
3.
Compliance with this Title;
4.
Adequacy of Public Improvements serving the Lot; and
5.
Environmental quality of the Development Design.
D.
Plans of proposed Developments may be referred by the Community Development Department to any City department, special district, governmental board, bureau, utility company, and other agency that will provide public or private facilities and services to the Development for their information and comment. The Community Development Department shall coordinate comments received from public and private entities and share such comments with the Applicant.
E.
The City Engineer shall review and comment on the engineering plans and specifications for the improvements required for Site Development consist with this Title, the Construction Standards and Specifications for Public Improvements and other applicable ordinances and shall be responsible for determining the appropriate amount of an Infrastructure Improvement Assurance, Improvement Warranty, and any Guaranty should be, and for inspecting the required improvements for compliance with this Title.
F.
The City Attorney shall verify that the Infrastructure Improvement Assurance, Warranty, and any other Guaranty provided by the Applicant is acceptable.
(Ord. No. 2020-02, § IV(Exh. C), 1-8-2020; Ord. No. 2023-27, § 1(Exh. A), 9-12-2023)
No permit shall be issued unless the Applicant has first paid to the City all applicable fees required and, as applicable and has reimbursed the City for all out of pocket costs incurred in review and enforcement of the Application. The amounts of all fees shall be listed in the fee schedule which may be amended from time to time by the City Council. Payment of fees does not affect the Applicant's obligation to construct and Dedicate Public Improvements or meet other obligations of Development approval.
(Ord. No. 2020-02, § IV(Exh. C), 1-8-2020; Ord. No. 2023-27, § 1(Exh. A), 9-12-2023)
Each person who proposes to Develop land shall first request a concept review from the Community Development Department. No Development shall be considered for approval until a written concept plan has been received from the Community Development Department. This provides the Applicant with an opportunity to consult with and receive assistance from the City regarding the regulations and design requirements applicable to the Development of property before submitting a complete Application.
(Ord. No. 2020-02, § IV(Exh. C), 1-8-2020; Ord. No. 2023-27, § 1(Exh. A), 9-12-2023)
A.
For all Development, prior to issuance of a Building Permit, the Development Site must meet the following criteria:
1.
The proposed Development is on a legal Lot.
2.
All required curb and gutter must be installed unless the City allows such installation to be deferred until a later stage of the Development; if deferred, then the location and elevation of curb and gutter must be clearly marked in a manner acceptable to the City and the Applicant must have posted a Site Development Guaranty to secure installation of curb and gutter before a date certain;
3.
All underground utilities located under the Street or access way surface are installed and accepted by the City and appropriate agencies;
4.
Fire hydrants are fully operational in the area of the Development where permits are requested, with adequate culinary water lines fire flow to meet the demands of all properties served by the line;
5.
Streets or access ways are rough graded and provided with an all-weather surface acceptable to the City; and
6.
Continuous access to the area of the requested permit through the project is provided by an access, approved by the City, and improved with an all-weather surface.
7.
Exceptions. A Parcel that contains a Single-Family Dwelling does not need to be on a legal Lot, if the following standards are met.
a.
The abutting Right of Way has been dedicated and meets the Standard Road Profile;
b.
All Public Improvements are in place and meet current standards; and
c.
All utilities are located within an easement.
B.
Limits of Disturbance/Vegetation Protection. A plan for vegetation protection during construction and for revegetation after construction is required. A security will be required to be posted to ensure compliance with the Limits of Disturbance plan.
1.
All Construction Activity must be contained within the Limits of Disturbance line, with the balance of the Property remaining undisturbed. Access to the Limits of Disturbance Area should be along the planned driveway.
2.
Building Pad lines may be specified on some Plats instead of Limits of Disturbance. If Building Pad lines are designated, no part of the new construction may lie outside of the Building Pad line.
3.
Limits of Disturbance must be designated in the field prior to commencement of excavation with temporary fencing approved by the Building Department.
C.
Final Grading Required. No Certificate of Occupancy shall be issued until Final Grading has been completed in accordance with the civil engineering plans approved with the final Subdivision Plat and the Lots recovered with top soil with an average depth of at least six (6) inches which shall contain no particles over two (2) inches in diameter over the entire Area of the Lot, except that portion covered by Buildings or included in Streets, or where the Grade has not been changed or natural vegetation damaged.
D.
Revegetation, Seed and Sod. All disturbed Areas on Lots shall be covered with topsoil and landscaped in accordance with Section 17.06.200.
E.
Debris and Waste. Unless otherwise approved by the City Engineer and Building Official, no cut trees, timber, debris, earth, rocks, stones, soil, junk, rubbish, or other waste materials of any kind shall be buried in any land, or left or deposited on any Lot or Street at the time of issuance of a Certificate of Occupancy, and removal of same shall be required prior to issuance of any Certificate of Occupancy in a Subdivision, nor shall any be left or deposited in any Area of the Subdivision at the time of expiration of the Infrastructure Improvement Assurance or acceptance of Dedication of Public Improvements, whichever is sooner.
F.
Maintenance. Until the Site Development is completed and accepted by the City and all appropriate agencies, the Owner/Applicant shall be responsible for the following in the area where Building Permits have been issued:
1.
Maintaining roads and access ways in a manner that allows continuous access for emergency vehicles; and
2.
Maintaining continuous flow capacities to all relevant hydrants in the Development.
G.
Guaranty. The Applicant shall issue a Guaranty to the reasonable satisfaction of the City Attorney that shall include an amount to ensure completion of all requirements contained in these regulations including, but not limited to, soil preservation, Final Grading, Lot drainage, Landscaping, lawn-grass seeding, removal of debris and waste, Fencing, and all other required Lot improvements.
1.
Governmental units to which a Guaranty applies may file in lieu of said contract or guaranties a certified resolution or ordinance from officers or agencies authorized to act in their behalf, agreeing to comply with the provisions of this Title.
(Ord. No. 2020-02, § IV(Exh. C), 1-8-2020; Ord. No. 2023-27, § 1(Exh. A), 9-12-2023; Ord. No. 2024-01, § I(Exh. A), 2-7-2024)
Property Access Requirements. No Building Permit shall be issued on a Lot or Parcel that is not an improved Lot. There shall be no human occupancy of any Building until all required Infrastructure Improvements have been completed and an occupancy permit has been issued.
A.
Disclosure Required. It shall be unlawful for any person to transfer any portion of an approved Development prior to certificate of occupancy unless that person has advised the prospective buyer that occupancy permits will not be issued until all required improvements are completed.
B.
Occupancy Restrictions. Occupancy will not be allowed until the following conditions are met:
1.
All necessary utilities are installed: e.g., culinary water lines, sanitary sewer, quad duct, flood control facilities, electric power, natural gas, and telephone transmission lines;
2.
Finished road surfaces and pedestrian safety infrastructure are installed.
3.
All building code requirements are met as confirmed by the City Building Official.
4.
Public Safety and Utility Access. Throughout construction and occupancy, all land Uses and Structures shall maintain unobstructed public utility and safety vehicle access in accordance with Appendix D of the International Fire Code in effect in the state of Utah.
(Ord. No. 2020-02, § IV(Exh. C), 1-8-2020; Ord. No. 2023-27, § 1(Exh. A), 9-12-2023)
Off-Street Parking Areas and access management are an integral part of all land use categories in the City of South Salt Lake. Vehicle and bicycle parking, access, loading, and circulation requirements are established to reduce Street congestion, traffic hazards, vehicle, and pedestrian interaction and to develop standards for organized off-Street parking. The regulations in this Section are intended to complement design and Use standards found elsewhere in this Title.
(Ord. No. 2020-02, § IV(Exh. C), 1-8-2020; Ord. No. 2023-27, § 1(Exh. A), 9-12-2023)
A.
Parking Area Development. The minimum off-Street Parking Stalls with adequate provisions for ingress and egress shall be provided at the time when one or more of the following improvements occur:
1.
New site Development.
2.
Structure Additions or Expansions. If a Building Permit is issued for an addition or expansion of a non-residential property that would increase the number of stalls required for the land Use.
3.
Parking areas, driveways, or drive lanes are expanded to include additional property or land area that was not included when the Development was originally approved.
4.
Change of Use to a more intensive Use of a Building through the addition of Dwelling Units, Floor Area, or seating capacity. When the Use of an existing Building or Structure is changed to a different type of Use, parking shall be provided in the amount required for such new Use.
5.
Shared Parking is proposed by two or more land Uses that have different parking patterns and peak parking demand hours. These Uses shall be able to use the off-Street Parking Stalls that are on the same parcel or within the condominium plat throughout the day to reduce the total demand for Parking Stalls.
6.
Existing hard surfacing is removed from the Parking Area and replaced with new hard surfacing as per Section 17.06.140(B).
B.
Existing parking and loading areas. If existing nonconforming parking and loading facilities are below the requirements as established in this Chapter, they shall not be further reduced.
C.
Floor Area. For the purposes of parking requirements, Floor Area shall be defined as the gross footage of the Building measured from the exterior corners. Parking ratios more than one-half will be rounded upward to the next highest whole number. Ratios less than one-half will be disregarded.
D.
Shared Parking. Property Owners and developers are encouraged to work out Shared Parking agreement with adjacent users, that have off-Street Parking Stalls that are on the same parcel or within the condominium plat, wherever possible according to the provisions for Shared Parking contained in Section 17.06.160(F).
E.
Continued obligation to provide Parking Stalls. Compliance with this Chapter is a continuing obligation so long as the Use continues. It shall be unlawful for any Owner of any Building or for any person responsible for providing parking to discontinue, eliminate or reduce a required Parking Area without providing some other approved vehicle Parking Area that meets the requirements of this Chapter, unless approval of the land use authority is obtained for the change in Parking Area.
F.
Nonconforming Parking Areas. The area and number of available Parking Stalls in nonconforming parking facilities shall not be further reduced. Any reconstruction, alteration or other change in Use shall be subject to the provisions of this Chapter.
G.
Parking for persons with disabilities. Parking Stalls for persons with disabilities shall meet the ADA and Uniform Federal Accessibility Standards, shall be provided in off-Street Parking Lot areas, and shall count towards fulfilling the minimum required automobile parking.
H.
Storage. All areas designated for off-Street parking, maneuvering, loading, or Site Landscaping shall not be used for outdoor storage of materials, repair, dismantling or inventory.
I.
Nonconforming, unused, or abandoned drive approaches. When the requirements listed in Subsection (A) are met, nonconforming, unused, or abandoned curb cuts and other drive approaches serving property within any land use district shall be brought into compliance with the provisions of this Chapter.
J.
Shared drive approaches. Shared driveways between and among Lots or Parcels are allowed only if both Owners execute and record an easement in a form approved by the City to ensure access in perpetuity for both Lots and Parcels.
K.
No Tandem parking is allowed, except for in an enclosed garage within the Townhome Overlay District.
(Ord. No. 2020-02, § IV(Exh. C), 1-8-2020; Ord. No. 2022-08, § I(Exh. A), 4-13-2022; Ord. No. 2023-27, § 1(Exh. A), 9-12-2023)
A.
Vehicles must be parked on a Hard Surface. All areas used for parking shall be paved with a Hard Surface of concrete or asphalt material.
B.
Trailer and Recreational Vehicle parking surface. All areas for parking Trailers and Recreational Vehicles shall be accessed from an approved driveway, incorporated into the original development design, and shall be paved with a Hard Surface of concrete or asphalt material. Townhome developments shall not incorporate Trailer or Recreational Vehicle parking.
C.
Commercial vehicle parking. The following vehicles are prohibited from parking in an R-1 land Use district, except for commercial vehicles making or receiving deliveries or vehicles engaged in active permitted Development activities:
1.
Commercial truck, trailer, or construction vehicle exceeding one (1) ton in capacity.
2.
Truck-tractor.
3.
Semi-trailer.
(Ord. No. 2020-02, § IV(Exh. C), 1-8-2020; Ord. No. 2021-06, § XIV, 5-26-2021; Ord. No. 2023-27, § 1(Exh. A), 9-12-2023; Ord. No. 2024-01, § I(Exh. A), 2-7-2024)
A.
Parking plans. Parking Development plans for any proposed Parking Area or facility shall be submitted to the land use authority. For Parking Lot areas that are not associated with new Building construction or redevelopment, the property Owner or its designated agent shall submit a parking Development plan to the City for review. Work shall not commence on Parking Lot improvements until the City has approved such improvements and issued a permit. The parking Development plan shall indicate the following proposed improvements with accurate measurements, including, but not limited to:
1.
Parcel size and dimensions.
2.
Building layout.
3.
Curb cuts for ingress and egress.
4.
Parking dimensions and configuration.
5.
Striping and traffic control markings.
6.
Landscaping as required in this Chapter and other relevant sections.
7.
Lighting.
8.
Drainage calculations and facilities for on-site detention and introduction into the storm sewer.
9.
Traffic or parking study if requested by the City or other government agency.
10.
Any necessary agreements with adjacent property Owners for Shared Parking, ingress and egress, drainage or utilities.
11.
Prior approvals from other government agencies which require approval for ingress or egress.
B.
Parking Area surfacing. Every Lot or Parcel of land used for a vehicle Parking Area or facility shall be paved with impervious asphalt or concrete surfacing.
C.
Parking Area lighting. When an existing Parking Area is proposed for redeveloped, or for additional lighting, an Applicant must submit proposed lighting plans to the City and a photometric study showing the following items:
1.
Location and description of each outdoor lighting fixture, aiming angle and mounting heights.
2.
Description of the outdoor light fixture including specifications of lamp optics and cutoff angles.
3.
A schedule providing for the reduction of on-site lighting during the hours when the facility is not in operation while still providing for levels necessary for security purposes.
4.
All new and replacement lighting shall have directional shields or control devices to reflect light trespass away from adjacent Uses and roadways.
5.
To control light trespass onto adjacent properties or Streets, the maximum illumination, when measured at the Property Line at a height of five feet and facing the light fixture(s), shall be no greater than 0.5 foot-candles.
6.
All Parking Lot lighting shall use a down lit fixture in order to encourage the practice of "dark sky" friendly practices.
D.
Curb. The perimeter of all paved surfaces shall be finished with a six-inch high curbing with ADA ramps where necessary. Bumper curbs shall be installed where appropriate to keep property and vehicles from being damaged and to prevent vehicles from over-hanging sidewalks. Where such curbs serve as a wheel stop for Parking Stalls, not less than thirty-six (36) inches shall be provided in the planting area as overhang clearance for tree locations. Curbs shall be designed to allow storm water to enter Landscaped Areas.
E.
Landscaping. Parking Lot Landscaping shall meet the requirements as found in Chapter 17.06.300.
F.
Drainage. Parking Lots shall be graded and drained to detain and dispose of all surface water as required by the City. The introduction of storm water into the storm sewer system shall meet minimum retention requirements as approved by the City.
G.
Parking Area location. See Chapter 17.07 Design Standards.
H.
Nonconforming driveways. Existing, nonconforming driveways and Parking Lots shall be reconstructed or removed upon Development of a new Building or other substantial site improvement.
(Ord. No. 2020-02, § IV(Exh. C), 1-8-2020; Ord. No. 2023-27, § 1(Exh. A), 9-12-2023; Ord. No. 2024-01, § I(Exh. A), 2-7-2024)
A.
Ingress and egress for non-residential Development.
1.
All Parking Areas shall be designed to provide ingress and egress from a Public Street. Development shall not include parking that would require that a vehicle back onto a Right-of-Way.
2.
All off-Street Parking Lots shall have access to a Public Street by means of a paved driveway.
3.
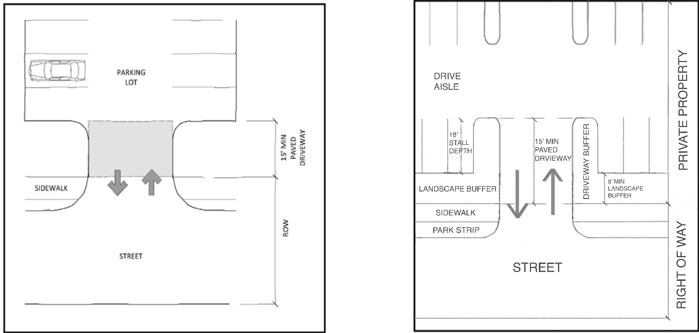
There shall be a minimum of fifteen (15) feet of driveway length between the public Right-of-Way and the nearest Parking Stall, with no parking allowed within this area.
4.
Parking Stalls located at the end of a dead-end Drive Aisle shall have a minimum of a five-(5) foot back-up area.
5.
Parking Lots shall be designed to include the necessary dimensions and circulation for the on-site maneuvering of fire and refuse trucks as determined by the City Engineer and the Fire Marshal. Fire access shall be continuously maintained for all driveway access and Parking Areas.
6.
As a condition of issuance of each Building Permit, any unused or abandoned drive approaches or portions thereof shall be restored to the original curb and gutter section by the removal of the drive approach and replacement of improvements required for the applicable road profile (i.e. curb, gutter, Park Strip, Landscaping, sidewalk, etc.) designated in this Chapter and the Roadways and Functional Classifications in the General Plan.
B.
Ingress/Egress, Driveway Access and separation.
1.
Residential driveways. Single Family Residential Driveways Located on Local Streets.
a.
Each Parcel shall have one (1) permitted driveway with a maximum width of twenty (20) feet as measured at the flare of the driveway. A second driveway may be allowed for a residence located on a Corner Lot to access a garage or Carport Parking Area in the rear yard.
b.
Driveways shall be a minimum of ten (10) feet wide along any point.
c.
Circular driveways may be allowed in required Front Yard area, along with a second drive leading from the circular driveway to a garage or Carport. Such driveways shall not exceed more than twelve (12) feet in width. To qualify for a circular driveway:
i.
a Lot shall be a minimum of seventy five (75) feet in width;
ii.
the Owner shall maintain approved Landscaping at least fifteen (15) feet in depth from the Front Property Line to the closest edge of the drive.
d.
Driveways on neighboring Lots shall be separated by a minimum of six (6) feet, as measured at the flare of the adjacent driveways. There shall be a minimum of three (3) feet of separation, as measured from the flare to the Property Line.
e.
For Corner Lots, no driveway shall be located closer than thirty (30) feet from on another at the point of curb intersections.
f.
Clear View Areas shall be unobstructed as depicted below:
2.
Townhome Unit Project Driveway Access. Vehicular access for Townhome Units shall be rear loaded, either from an Internal Primary Access Road, where the Unit fronts on a Street identified in the City's Standard Road Profiles, Roadways and Functional Classifications in the General Plan or from a Secondary Internal Access Road, where the Unit Fronts on an Internal Primary Access Road or on significant, platted Open Space.
3.
Multi-Family, commercial and industrial driveways.
a.
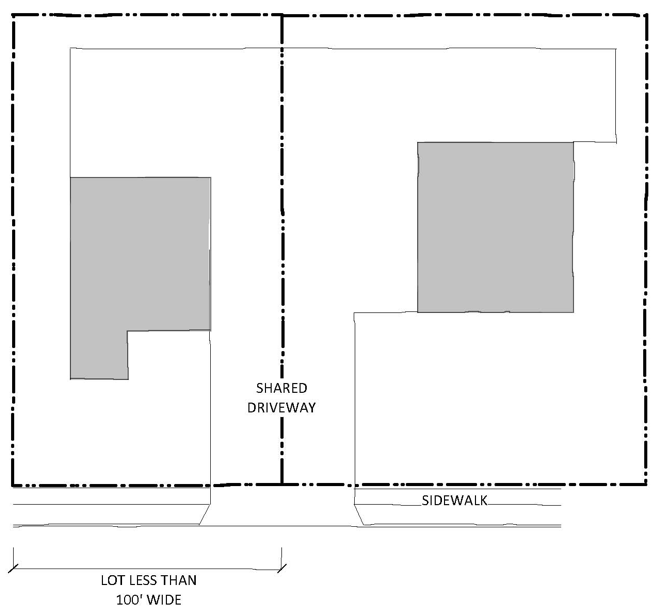
Lots with fewer than one hundred (100) feet of Frontage on Arterial or Collector Streets shall have only one (1) approach. The maximum approach width is thirty (30) feet. Shared common drive approaches are encouraged in order to reduce the number of entrances on the Street and to support efficient travel of vehicles.
b.
Lots that have Frontage greater than one hundred (100) feet may have one (1) additional drive approach every one hundred (100) feet. Drive approaches shall not be greater than thirty (30) feet in width, as measured from the flares on each approach.
c.
On Lots that have Frontage greater than one hundred (100) feet, the City Engineer or designee may approve an increase to a drive approach within the Flex, Downtown, or Master Plan Mixed Use Zones for driveways up to fifty (50) feet in width, based upon a traffic or parking study performed by a licensed-Professional Engineer and review of relevant factors, including, but not limited to:
i.
Safety.
ii.
Alternative access points and potential for reciprocal or shared accesses.
iii.
Sight lines.
iv.
Impact on traffic flow.
v.
Site circulation.
d.
Driveways adjacent to intersections on Corner Lots shall meet the following minimum distance requirements as measured from the flare of the drive approach to the point of the corner intersection.
i.
Major/Minor Arterial: One hundred (100) feet.
ii.
Major Collector: One hundred (100) feet.
iii.
Minor Collector: Fifty (50) feet.
e.
Driveways on abutting commercial Lots shall be separated a minimum of twenty (20) feet and no driveway shall be located close to a Property Line than seven (7) feet unless jointly shared (by recorded easement) by adjoining properties.
f.
On Lots that have Frontage greater than one hundred (100) feet, the City Engineer or designee may approve a modification to the drive approach separation requirements based upon a site visit and review of relevant factors, including, but not limited to:
i.
Safety.
ii.
Alternative access points and potential for reciprocal or shared accesses.
iii.
Sight Lines.
iv.
Impact on traffic flow.
v.
Site Circulation.
4.
The following shall be considered when reviewing driveway access points:
a.
The movement of vehicular traffic;
b.
Public Improvements;
c.
Alternative access points and shared access; and
d.
Clear View Area regulations and safety.
(Ord. No. 2020-02, § IV(Exh. C), 1-8-2020; Ord. No. 2021-06, § XV, 5-26-2021; Ord. No. 2022-08, § I(Exh. A), 4-13-2022; Ord. No. 2023-27, § 1(Exh. A), 9-12-2023; Ord. No. 2024-01, § I(Exh. A), 2-7-2024)
A.
Parking requirements for specific Uses. Off-Street parking shall be provided for Uses as indicated in the following matrix.
1.
Uses Not Specifically Listed. Parking requirements for Permitted or Conditional Uses not specifically listed in the following matrix shall be provided in the same ratio as the Use most closely approximating the characteristics of the unlisted Use, as determined by the Community Development Director.
2.
Employee parking for Uses with an employee component shall be determined using the maximum number of employees working on the largest shift.
3.
Uses located in the Transit Oriented Development and Transit Oriented Development - Core district and Commercial Neighborhood district that have a bicycle parking requirement shall provide 1 bicycle parking space per every 15 vehicle Parking Stalls. This requirement supersedes those ratios established in the matrix below.
4.
A traffic or parking study may be requested by the City for Uses that are over 10,000 square feet.
5.
Matrix of Parking Requirements by Use. Uses are grouped into categories that have similar parking requirements. The following matrix indicates the required parking for Uses in the City:
B.
Parking Stall Configuration. The minimum Parking Stall and Drive Aisle configurations are provided in the following table and illustration.
*Drive Aisle widths may be increased when required by the City Fire Marshal or City Engineer.
*Parking spaces located adjacent to walls or columns shall be one foot (1') wider to accommodate door opening clearance and vehicle maneuverability.
C.
Vehicle stacking capacity in drive-thru lanes. The following table shall be used when determining stacking capacity for the following drive-thru Uses:
*More stacking may be required by the City Engineer, subject to a queue analysis completed by a licensed Professional Engineer with a background in transportation engineering or related field based on peak hour traffic.
D.
Parking Reduction Plan. The land use authority may approve a modification in the number of off-Street Parking Stalls required for a Development in accordance with the ratios established in this Section. This section may not be applied in a Townhome Overlay District.
1.
Residential Parking:
a.
The Applicant must submit evidence that the proposed Development meets one (1) of the following below.
i.
Located in Transit Oriented Development - Core (TOD-Core), Downtown, or East Streetcar district; or
ii.
Located within a quarter (1/4) mile of a TRAX or Streetcar station.
b
All Developments must submit a parking and traffic study performed by a licensed Professional Engineer with a background in transportation engineering or related field. In addition, the Development shall submit a detailed description of the proposed, anticipated parking demand, proposed circulation plan, and describe any unique circumstances that would otherwise reduce the parking requirement.
c.
All documentation shall be submitted to the Community Development Department and must comply with all applicable standards contained in this Chapter with the following exceptions:
i.
The standard requirement for residential parking in the district where the development is located.
ii.
The land use authority may consider increases or reductions to standards outlined in the accompanying table. The maximum decrease from any standard parking rate for a Residential Use shall be twenty percent (20%) or 1:1 stall per unit ratio.
iii.
Dedicated visitor parking. Developers shall clearly indicate the location of dedicated visitor parking through directional signage, marked stalls, or other means to be determined in Site Plan review.
d.
The following table provides all eligible parking rate reductions available for Developments that meet the requirements in 17.06.160(D):
2.
Commercial Parking.
a.
Commercial Use transit-oriented Developments may receive up to a twenty percent (20%) reduction in parking when located within the Transit Oriented Development-Core, Downtown, and East Streetcar districts. A Development must comply with at least two (2) additional requirements below to qualify for the parking reductions:
i.
Shared Parking. The Development consists of two (2) or more land Uses that have different parking patterns and peak parking demand hours. Regulations for Shared Parking can be followed as found in Subsection (G) of this Section except for the following additional provisions:
a)
In Mixed-Use Developments, no one Use may consist of less than 20% of the Building square footage; and
b)
Mixed-Use Buildings must be comprised of at least 50% Residential Use.
ii.
Transit passes are provided to 100% of employees at the Development.
iii.
Provisions are made for long-term bicycle storage for residential tenants or business employees. Long-term storage shall consist of facilities such as lockers, indoor Parking Areas, or other secure areas designated for parking.
iv.
Alternative proposals approved by the land use authority that will encourage and provide for increased transit ridership.
E.
Manufacturing and Storage Warehouse Uses may receive up to a twenty percent (20%) reduction in parking when located within the Flex District. The applicant shall provide documentation supporting the proposed reduction. The parking reduction is at the discretion of the City Engineer based on the following standards.
a.
All Developments must submit a parking and traffic study performed by a licensed transportation engineer or related field. In addition, the Development shall submit a detailed description of the proposed Use (include the square footage), hours of operation, anticipated parking demand, proposed circulation plan, and describe any unique circumstances that would otherwise reduce the parking requirement.
b.
Any Change of Use, expansion of use (employees, Use, Development), or transfer of property ownership would require the property owner to resubmit for consideration of any approved parking reduction.
F.
Excessive parking. Commercial Developments shall not have parking in excess of that required by this Chapter, without prior written approval of the land use authority. If more Parking Stalls are requested, written justification of the specific need for more Parking Stalls than the provisions of this Chapter allow may be required. The land use authority may require a parking and/or traffic impact analysis by a licensed Professional Engineer with a background in transportation engineering or related field when the request exceeds 20 stalls or an increase of ten percent (10%).
G.
Shared Parking. Flexibility through Shared Parking may be allowed when two (2) or more Uses within the same Project, with access to the same Parking Stalls, have different parking patterns and peak parking demand hours. These Uses shall be able to use the off-Street Parking Stalls that are on the same Parcel or within the condominium plat throughout the day to reduce the total demand for Parking Stalls. The following schedule of Shared Parking is provided to indicate how Shared Parking for certain Uses might be used to reduce the total parking required. This provision does not apply to Townhome Developments.
1. For Shared Parking purposes weekend shall begin on Friday at 6:00 p.m.
2. Provision shall be made between shared Uses for typical design day for commercial Uses to ensure sufficient parking.
3. Percentage of Shared Parking reduction for entertainment Uses may be increased by the land use authority depending on the intensity of the Use and Compatibility with Shared Parking uses.
1.
To qualify for approval of Shared Parking, Applications shall contain the following:
a.
Proof that all uses subject to the Shared Parking Application are within the same Project;
b.
Location and identity of each Use that will share the Parking Area;
c.
Total parking requirement for each Use;
d.
The projected hours of operation of each Use and the hours during which the peak parking demand will be experienced;
e.
The number of proposed Parking Stalls;
f.
A Site Plan showing that the furthest Parking Stall is no greater than 300 feet from the nearest entrance of each Use intended to share the parking;
g.
A Site Plan showing that the proposed Shared Parking Area will comply with all standards required by this Chapter for Parking Area Development;
h.
A Pedestrian circulation plan that shows connections and walkways between Parking Areas and land Uses; and
i.
No one single Use may be less than ten percent (10%) of the overall Building square footage.
2.
Other Uses. If one or more of the land Uses intended to share parking facilities does not conform to the general land use classifications in the Shared Parking matrix, an Applicant may submit data to specify the principal operating hours of the uses. The land use authority may also take this information into account in determining the appropriate Shared Parking accommodation, if any, for such Uses.
3.
Shared Parking Among Lots Under Different Ownership. When a Shared Parking reduction is to be applied to Uses on several Lots under different ownership, the following shall be provided:
a.
A plan that provides for deed restrictions to ensure the parking and uses cannot be separated without a change in occupancy and a deed release from the City;
b.
Recorded easements that provide, at a minimum, for:
i.
Cross-access for both vehicles and pedestrians among the Parking Areas and connections;
ii.
Allocation of maintenance responsibilities;
c.
Parking for all Uses shall be located within 300 feet from the nearest entrance of each Use intended to share the parking.
d.
Shared Parking among Lots under different ownership may be approved by the land use authority following submittal of a parking Development plan Application and compliance with the provisions detailed above.
(Ord. No. 2020-02, § IV(Exh. C), 1-8-2020; Ord. No. 2021-06, § XVI, 5-26-2021; Ord. No. 2022-08, § I(Exh. A), 4-13-2022; Ord. No. 2022-16, § 1(Exh. A), 9-14-2022; Ord. No. 2023-27, § 1(Exh. A), 9-12-2023; Ord. No. 2024-01, § I(Exh. A), 2-7-2024; Ord. No. 2025-05, § 1(Exh. A), 3-12-2025)
A.
All Buildings with loading docks or loading areas shall meet the following requirements:
1.
All loading and unloading areas must be located behind the Primary Façade and must not be visible from a Public Right-of-Way.
2.
All loading and unloading associated with the Use shall be performed on-site. Such on-site loading area shall be in addition to required off-Street parking and shall not be located within driveways or Drive Aisles.
3.
All loading docks and unloading areas shall be located so that no delivery vehicle will be parked or require maneuvering within the public Right-of-Way. Maneuvering and backing space to the loading dock shall be accommodated on-site.
4.
Public Rights-of-Way shall not be used for loading or unloading.
5.
Each loading area shall not be less than thirty-five (35) feet in length and twelve (12) feet in width. Enclosed or covered loading and unloading areas shall have an overhead clearance of not less than fourteen (14) feet.
6.
Off-Street loading areas shall not block use of required Parking Stalls areas on the Site or adjacent Sites.
7.
Loading/unloading areas shall be asphalt or concrete and constructed to drain and dispose of surface water on-site, away from the Building.
B.
Standing and Passenger Loading Areas. Uses such as daycares, schools, hotels, and places for public assembly shall provide at least one safe off-Street passenger loading/unloading area that is adequately signed and striped. Such passenger loading/unloading areas shall be located at the point of primary pedestrian access from the Parking Lot area to the adjacent Building, or Buildings, and shall be designed in such a manner that vehicles waiting in the loading area do not impede vehicular or pedestrian circulation in the Parking Area. This does not include deliveries such as package delivery and third party food services,
(Ord. No. 2020-02, § IV(Exh. C), 1-8-2020; Ord. No. 2022-08, § I(Exh. A), 4-13-2022; Ord. No. 2023-27, § 1(Exh. A), 9-12-2023)
Temporary Parking Lot may be approved by the City for a special event if the following conditions are met:
A.
Compacted road base, gravel, or recycled asphalt is used;
B.
Signage is provided that designates the temporary Parking Area; and
C.
Use of the Parking Lot is limited in duration, which Use shall not exceed thirty (30) days in any 365-day period.
(Ord. No. 2020-02, § IV(Exh. C), 1-8-2020; Ord. No. 2023-27, § 1(Exh. A), 9-12-2023)
All new Development or change of Use must install parking for bicycles as required in the parking matrix. Required bicycle parking areas shall comply with the following standards:
A.
Bicycle parking shall be provided with racks that allow the frame and one wheel to be locked to the rack with a high security, U-shaped or chain/cable lock.
B.
Racks shall be clearly visible and accessible yet should not interfere with pedestrian traffic or other site furnishings.
C.
Parking areas shall be well-lit for theft protection, personal security, and accident prevention.
D.
Location of bicycle parking shall be separated from vehicle parking and roads with space and physical barriers in order to prevent potential damage to parked bikes or vehicles. Bicycle parking shall not be located on sidewalks or in areas that obstruct pedestrian traffic flow.
E.
Parking areas shall be located within one hundred (100) feet of the primary Building entrance.
F.
Where feasible, the use of existing overhangs or covered areas are encouraged to provide weather protection for bicycle parking areas.
(Ord. No. 2020-02, § IV(Exh. C), 1-8-2020; Ord. No. 2023-27, § 1(Exh. A), 9-12-2023)
A.
Designated Parking Areas shall be continually maintained to properly function for the intended vehicle parking Use.
B.
When surfacing materials are removed, changes are made to the Grade, or changes that would require a review by the City, the property Owner or agent shall submit a parking Development plan as outlined in Section 17.06.140, and obtain a permit from the City to ensure that the replaced surfacing and drainage meets current City regulations.
C.
Parking Lot striping for stalls and pedestrian crossings shall be maintained on a regular basis so that stripping is visible.
D.
Slurry seals, seal coating, patching or crack sealing does not require a permit for maintenance unless such work changes the Grade or Retention Areas of the Site.
(Ord. No. 2020-02, § IV(Exh. C), 1-8-2020; Ord. No. 2023-27, § 1(Exh. A), 9-12-2023)
A.
Purpose. The purpose of this Chapter is to outline Landscaping requirements that establish minimum standards to:
1.
Improve the City's image and identity;
2.
Increase the Compatibility of adjacent Uses and minimize the harmful impacts of noise, dust, debris, and light pollution;
3.
Enhance the visual appearance of Streetscapes;
4.
Encourage innovation and design;
5.
Establish opportunities for sustainable storm water management;
6.
Encourage water conservation;
7.
Support a diversity of plants suited to local conditions; and
8.
Sustain and improve the City's urban forest.
B.
Applicability. This Chapter applies to all new Development and Structure additions.
1.
Wherever Landscaped Areas are required by this Chapter, a Landscape Plan shall be submitted to the City.
2.
A Landscape Plan is required for any Application for a Building Permit or certificate of occupancy. A Building Permit will not be issued without submission and City approval of a Landscape Plan.
3.
The Landscaped Areas as required by this Section shall be installed on property where Landscaped Areas are not in place or are non-conforming when:
a.
New construction occurs on undeveloped, vacant, or cleared property.
b.
A Conditional Use permit is issued, or a change of Use occurs. The land use authority shall make installation of Landscaping a condition of approval.
c.
A Building Permit is issued for any addition, expansion, or intensification of any property other than an existing Single-Family home that increases the Floor Area of a Building and/or the parking requirement by fifty (50) percent or more.
d.
A Building Permit is issued for any addition to a Single-Family residence that increases the Floor Area of the residence by seventy five (75) percent or more. This standard does not apply to expansion or addition of accessory Buildings on residential properties.
e.
A change of Use occurs.
f.
A Parking Area is expanded by fifteen (15) percent, or a minimum of seven (7) stalls.
g.
An existing property is re-landscaped.
Public parks, recreation facilities, and open spaces in any district are exempt from the provisions of this Chapter.
C.
Modification. Existing Structures shall comply with the standards contained in this Chapter, to the maximum extent possible.
D.
General Landscape Requirements.
1.
At a minimum, Landscaping is required in all Yard areas, along the perimeter of Parking Areas, in front of Buildings, and in the Front Setback of any improved property not used for parking, driveways, walkways, or approved display areas.
2.
General Design Standards.
a.
Landscape Plans shall be prepared and approved based on design standards in this Chapter and other applicable City requirements.
b.
Tree and Shrub Requirements.
i.
Not less than seventy five (75) percent of the trees specified on the Landscape Plan shall be water conserving species.
ii.
Deciduous and ornamental trees shall have a minimum two (2)-inch caliper trunk size at the time of installation.
iii.
Evergreen trees shall have a minimum height of six (6) feet at the time of installation. Evergreens shall be incorporated into a Site where a Buffer is required between adjacent Uses or busy roadways.
iv.
Shrubs shall have a minimum height or spread of eighteen (18) inches at the time of installation, depending on the plant's natural growth habit (after two (2) years of growth). Plants in five (5)-gallon containers will generally comply with this standard.
v.
Existing trees that are non-invasive and not noxious and that are preserved and incorporated into the Landscape Plan shall be credited toward the minimum number of trees required by this Chapter. Trees must be in healthy condition and free of injury to receive this credit. Any credited tree that is not preserved or is significantly damaged during construction shall be removed and replaced with four (4) trees, each with a minimum caliper of four (4) inches. Tree replacement shall conform to the tree and shrub requirements.
c.
Plant and Turf Grass Requirements.
i.
Annual and perennial plants shall be installed from transplants, and not seeded on site.
ii.
Only water conserving varieties of Turf Grass shall be used in the City.
iii.
No more than thirty five (35) percent of the front and side yard landscaped area in any new single-family residential development may be Turf Grass.
iv.
No Turf Grass is permitted in the total Landscaped Area in any new townhome, multi-family residential, commercial or flex development, outside of active recreation zones.
v.
No Turf Grass is permitted on Park Strips or areas less than eight (8) feet in width in new development.
vi.
Turf Grass may be seeded on site, but the seeded area must be one hundred (100) percent covered with Turf Grass within one (1) year.
vii.
Live Plant Material shall comprise at least seventy five (75) percent of the total Landscaped Area for all properties.
d.
Mulch and Decorative Rock Requirements.
i.
Landscaped Areas may include mulch and decorative rock in accordance with Park Strip requirements and specific Use requirements specified in this Chapter.
ii.
If ornamental gravel is utilized, it must be contained within durable borders or edging.
iii.
At least three to four (3 to 4) inches of mulch, permeable to air and water, shall be used in planting areas to control weeds and improve the appearance of the landscaping.
e.
Swales and Detention or Retention Basins.
i.
Swales and detention or retention basins required for storm water management shall be landscaped with suitable trees, shrubs, groundcover, perennials, or other Landscaping materials, and/or decorative paving. Swales may not be used in the Setbacks of Townhome Developments.
ii.
Live Plant Material shall cover at least seventy five (75) percent of the area of the swale or detention or retention basin.
iii.
Swales, detention and retention basins shall not be deeper that than 1.5 feet.
f.
Berming is prohibited.
g.
Irrigation. Permanent irrigation systems are required wherever Landscaping is required by this Chapter. Irrigation systems shall meet the standards below.
i.
All irrigation shall be appropriate for the designated plant material to achieve the highest water efficiency. Drip irrigation or bubblers shall be used except in Turf Grass areas. Drip irrigation systems shall be equipped with a pressure regulator, filter, flush-end assembly, and any other appropriate components.
ii.
Each irrigation valve shall irrigate landscaping with similar site, slope, and soil conditions, and plant materials with similar watering needs. Turf Grass and planting areas shall be irrigated on separate irrigation valves. In addition, drip emitters and sprinklers shall be placed on separate irrigation valves.
h.
Clear View Requirements. All landscape elements are subject to the Clear View Area requirements.
E.
Landscape Plan Requirements.
1.
Content of Landscape Plan. All Landscape Plans submitted for approval shall be drawn in accordance with the South Salt Lake Community Development Department's plan submittal requirements. The Landscape Plan shall include:
a.
The location and dimensions of all existing and proposed Structures, Property Lines, easements, planting areas, Buffers, Parking Lots, driveways, roadways and Rights-of-Way, sidewalks, bicycle paths, freestanding signs, waste enclosures, bicycle parking areas, fences, walls, ground level utility equipment, recreational facilities, and any other freestanding Structure.
b.
The location, spacing, quantity, size, and common and botanical names of all proposed plants.
c.
The location, size, and common and botanical names of all existing trees and other plants on the property and in the Park Strip, either to be retained or removed.
d.
Existing and proposed grading of the site at one (1)-foot contour intervals including any proposed landscaped Berms.
e.
Elevations for fences and retaining walls proposed for location on the site.
f.
Elevations, cross sections, and other details as determined necessary by the land use authority.
g.
The irrigation plan, drawn on a separate sheet.
h.
Summary data indicating the area of the site in the following classifications:
i.
Total area and percentage of the site in Landscaped Area.
ii.
Total area and percentage of the site in Turf Grasses.
iii.
Total area and percentage of the site in water-efficient plant species at mature growth.
iv.
Total area and percentage of the site in planting area.
2.
Landscape Maintenance Standards.
a.
Responsibility. The property Owner shall be responsible for the maintenance, irrigation, repair and replacement of all plants, turf, trees, and Landscaping materials required in this Chapter. The property Owner shall also keep their property free of uncontrolled weed and volunteer plant growth.
b.
Landscaping Materials. Landscaping shall be maintained in good condition in a healthy, neat, and orderly appearance. Plants and trees that are dead or dying shall be removed and replaced. Landscaped Areas shall be regularly irrigated, mowed and pruned as needed, be kept free of weeds, dead plants, garbage, and debris.
c.
Pruning Required. Trees, hedges, shrubs, and plants near public sidewalks and roads shall be pruned and maintained so that the public Right-of-Way is unobstructed. Shade trees or other plantings that project over any sidewalk shall be maintained clear of all branches between the ground and a height of six (6) feet for that portion of the plant located over the sidewalk. Shade trees and plantings that project over any Street or access road shall be maintained free of any plant material extending over the Street to a height of fourteen (14) feet from the Grade of the Street or access road.
d.
Irrigation Systems. Irrigation systems shall be maintained in good operating condition to promote the conservation of water.
3.
Landscape Requirements for Park Strips.
a.
Intent. The intent of the Park Strip Landscaping standards is to enhance the aesthetics of City Streets, to increase safety along roadways, to prohibit materials that may cause harm or injury to pedestrians and vehicles, to provide safe and convenient access across Park Strips to and from parking and pedestrian access, to allow access for repair and maintenance of public utilities, and to uphold Clear View Area requirements.
b.
Applicability. Park Strip standards apply to all properties in the City, including vacant Lots that have curbs and/or gutters along Street Frontages. Owners of property on Streets that lack curb and gutter are not required to maintain formal Landscaping within the public Right-of-Way, unless new curb and gutter is required as new Development occurs.
c.
Installation. All Park Strips shall be landscaped and continuously maintained by the abutting property Owner. For permits involving new construction or a change of Use, Park Strip Landscaping shall be shown on the required Landscape Plan.
d.
Park Strip Design Standards Table:
F.
Landscape Requirements Along Urban Corridor Streets.
1.
Applicability. The Landscaping standards in this Section shall be required for all properties with Frontage along State Street, 2100 South, 3300 South, 3900 South, 900 West, 300 West, 700 East, and Main Street.
2.
Design Standards: 2100 South, 3300 South, 3900 South, 900 West, 300 West, 700 East, and Main Street (excluding Downtown, the Crossing MPMU, and Townhome Overlay District).
a.
Area. Installation of a minimum of fifteen (15) feet of Landscaping along the entire length of the property between the back of the sidewalk along the urban corridor Street and any fence, Parking Area, or Structure on the Site is required.
b.
Prohibited Uses and Activities. Parking, display, sales, storage, Structures, or temporary signage are not allowed in the Landscaped Areas.
c.
Approved access driveways and walkways are allowed to cross the landscape area.
d.
Outdoor seating areas up to three hundred (300) square feet in area for Restaurants and similar public Uses are allowed in the landscape areas.
e.
Live plant material coverage of at least seventy five (75) percent.
f.
A minimum of one (1) tree is required for every one thousand (1,000) square feet of Landscaped Area.
3.
Design Standards: State Street, Downtown, the Crossing MPMU and Townhome Overlay Urban Landscape Area.
a.
Area. Installation of a minimum width of ten point five (10.5) feet of concrete sidewalk and street landscaping (measured from back of curb) along the entire length of the property between the back of the curb along dedicated Streets to any fence, Parking Area, or Structure on the Site is required.
b.
Prohibited Uses and Activities. Parking, display, sales, storage, Structures (other than required raised planters), or temporary signage are not allowed in the Landscaped Areas.
c.
Approved Local Access Roads and walkways are allowed to cross the urban landscape area.
G.
Landscape Requirements for Parking Lots.
1.
Intent. Landscaping is required for Parking Areas in order to break up large expanses of pavement, to provide relief from reflected glare and heat, to guide vehicular and pedestrian traffic, and to efficiently and sustainably retain storm water.
2.
Applicability. All Hard-Surfaced Parking Areas, including those for vehicle sales, with fourteen (14) or more Parking Stalls shall provide Landscaping in accordance with the provisions of this Section. Smaller Parking Areas shall not be required to provide Landscaping other than Landscaping required for Park Strips, Buffers, and front yards.
3.
Parking Lot Landscaping Standards.
a.
General Requirements.
i.
Site Plan Required.
ii.
All Landscaping shall meet Clear View Area requirements.
iii.
Landscaped Areas shall be protected by concrete vertical curbs. Curbs shall be designed to allow storm water to enter the Landscaped Area. Where such curbs serve as a wheel stop for Parking Stalls, not less than 36 inches shall be provided in the planting area as overhang clearance for tree locations.
iv.
Pedestrian paths in Parking Lots, with the exception of crosswalks, shall be bordered by landscaped Park Strips with a minimum width of three (3) feet, in accordance with the commercial or industrial Park Strip standards of this Chapter.
b.
Interior Landscaping.
i.
Area. Not less than five (5) percent of the interior of a Parking Area shall be devoted to Landscaping.
ii.
Interior Landscaping Design Standards.
a)
Driveway buffers shall be landscaped. The landscaping shall be a minimum of eight (8) feet in width, as measured from back of curb to back of curb and shall run the length of the driveway.
b)
Surface Parking Lots containing sixty (60) or more customer stalls shall have landscaping islands every fifteen (15) stalls or median islands every two (2) rows. Shade trees shall be provided at no less than one (1) tree per ten (10) Parking Stalls. Tree wells shall be a minimum of five (5) feet in radius measured from the center of the tree trunk.
iii.
Perimeter Landscaping. Where a Parking Lot is located within a required yard area or within twenty (20) feet of a Lot Line, perimeter Landscaping shall be required along the perimeter of the Parking Lot. Perimeter Landscaping must be at least seven (7) feet in width, as measured from the back of the Parking Lot curb. At least one (1) tree shall be planted for each four hundred (400) square feet of the landscaped Perimeter Landscaping shall be planted.
a)
Public right-of-way shall have eight (8) feet of landscaping.
b)
A non-Single-Family Residential Use shall have eight (8) feet of landscaping.
c)
A Single-Family Residential Use shall have ten (10) feet of landscaping.
H.
Landscape Requirements for Buffers.
1.
Intent. Buffers are used to mitigate the transition between Development types and incompatible Uses.
2.
Applicability. All Buffers required by other sections in this Code shall be landscaped.
3.
Buffer Design Standards. Landscape Buffers shall be reserved for planting and fencing. No parking, driveways, or Accessory Structure shall be permitted, unless specifically authorized through the Site Plan review process. Landscape Buffers may be located within required Setbacks. Where both landscape Buffers and Parking Lot Landscaping is required the more restrictive shall apply.
4.
At least one (1) tree shall be planted for each four hundred (400) square feet of the landscaped Buffer shall be planted.
I.
Specific Landscape Standards.
1.
Design Standards.
a.
Single-Family Buildings.
i.
Front yard and corner side yard Landscaped Areas required to be landscaped shall be landscaped with suitable trees, shrubs, groundcovers, perennials, or other Landscaping materials. Plants, not including tree canopies, shall cover at least seventy five (75) percent of the front and/or corner side yard area at maturity.
ii.
Each front yard shall contain at least two (2) trees.
iii.
Water features, landscape boulders, decorative rocks, gravel, and organic mulch are permitted but shall not be considered a substitute for plants.
b.
Multi-Family Developments.
i.
Landscaped Areas. Yards, Setbacks, Park Strips, required Buffers, required open space, and Parking Areas shall be landscaped as required in this Chapter. Landscaping shall be used to screen ground level utility equipment from view of Streets, sidewalks, or walkways to the greatest extent possible. No Turf Grass is permitted in the total Landscaped Area in any new multi-family residential development, outside of active recreation zones.
ii.
Plant Coverage. All required Landscaped Areas shall be landscaped with suitable trees, shrubs, groundcovers, perennials, or other Landscaping materials. Plants, not including tree canopies, shall cover at least seventy five (75) percent of required Landscaped Areas.
iii.
Site Trees. A minimum of two (2) trees per one thousand (1,000) square feet of Landscaped Area is required, in addition to requirements for Yards, Setbacks, Park Strips, required Buffers, and Parking Areas described in this Chapter.
iv.
Water features, landscape boulders, decorative rocks, gravel, and organic mulch are permitted but shall not be considered a substitute for plants.
v.
If ornamental gravel is utilized, it must be contained within durable borders or landscaped edging.
c.
Townhome Developments.
i.
Landscaped Areas. Yards, Setbacks, Park Strips, required Buffers, required Common Open Space, Usable Open Space, and Parking Areas shall be landscaped as required in this Chapter. Landscaping shall be used to screen ground level utility equipment from view of Streets, sidewalks, or walkways to the greatest extent possible. No Turf Grass is permitted in the total Landscaped Area in any new townhome development, outside of active recreation zones.
ii.
Plant Coverage. All required Landscaped Areas shall be landscaped with suitable trees, shrubs, groundcovers, perennials, or other Landscaping materials. Plants, not including tree canopies, shall cover at least seventy five (75) percent of required Landscaped Areas.
iii.
Site Trees. Trees are required every twenty (20) feet in all Setback and Buffer areas, both sides of the Local Access street, in addition to requirements for Yards, Open Space, and Parking Areas described in this Chapter.
d.
Commercial and Flex.
i.
Landscaped Areas. Landscaped Areas shall comprise not less than fifteen (15) percent of a commercial or professional office site. Landscape requirements for Buffers, Parking Areas, Park Strips, and additional Landscaping along urban corridor Streets as required in this Chapter may be included as part of the overall site requirement. Landscaping shall be used to screen ground level utility equipment from view of Streets, sidewalks, or walkways to the greatest extent possible. No Turf Grass is permitted in the total Landscaped Area in any new commercial or flex development, outside of active recreation zones.
ii.
Plant Coverage. All required Landscaped Areas shall be landscaped with suitable trees, shrubs, groundcovers, perennials, or other Landscaping materials. Live plants, not including tree canopies, shall cover at least seventy five (75) percent of required Landscaped Areas.
iii.
Site Trees. A minimum of two (2) trees per one thousand (1,000) square feet of Landscaped Area is required, in addition to requirements for Yards, Setbacks, Park Strips, required Buffers, and Parking Areas described in this Chapter.
iv.
Water features, landscape boulders, decorative rocks, gravel, and organic mulch are permitted but shall not be considered a substitute for plants. Landscape boulders shall only be allowed as a focal feature or may be used as a protective device from vehicle traffic.
v.
If ornamental gravel is utilized, it must be contained within durable borders and arranged in a decorative pattern that incorporates varying sizes, types, or colors of gravel.
(Ord. No. 2020-02, § IV(Exh. C), 1-8-2020; Ord. No. 2021-06, § XVII, 5-26-2021; Ord. No. 2022-08, § I(Exh. A), 4-13-2022; Ord. No. 2022-16, § 1(Exh. A), 9-14-2022; Ord. No. 2023-27, § 1(Exh. A), 9-12-2023; Ord. No. 2023-29, § I, 10-12-2023; Ord. No. 2023-31, § I(Exh. A), 10-25-2023)
06 - DEVELOPMENT STANDARDS
No Building Permit shall be issued for the construction of any Building or Structure located on a Lot or Parcel that does not conform to these regulations.
A.
The Applicant shall prepare Site Development plans consistent with the standards contained herein and shall pay for the design, evaluation, construction, and inspection of any Public Improvements required.
B.
No one shall alter any terrain or remove any vegetation from the proposed Development Site or engage in any Site Development until an Applicant has obtained the necessary Development Permits.
C.
The Community Development Department shall review submitted plans for:
1.
Design;
2.
Conformity to the Master Plans;
3.
Compliance with this Title;
4.
Adequacy of Public Improvements serving the Lot; and
5.
Environmental quality of the Development Design.
D.
Plans of proposed Developments may be referred by the Community Development Department to any City department, special district, governmental board, bureau, utility company, and other agency that will provide public or private facilities and services to the Development for their information and comment. The Community Development Department shall coordinate comments received from public and private entities and share such comments with the Applicant.
E.
The City Engineer shall review and comment on the engineering plans and specifications for the improvements required for Site Development consist with this Title, the Construction Standards and Specifications for Public Improvements and other applicable ordinances and shall be responsible for determining the appropriate amount of an Infrastructure Improvement Assurance, Improvement Warranty, and any Guaranty should be, and for inspecting the required improvements for compliance with this Title.
F.
The City Attorney shall verify that the Infrastructure Improvement Assurance, Warranty, and any other Guaranty provided by the Applicant is acceptable.
(Ord. No. 2020-02, § IV(Exh. C), 1-8-2020; Ord. No. 2023-27, § 1(Exh. A), 9-12-2023)
No permit shall be issued unless the Applicant has first paid to the City all applicable fees required and, as applicable and has reimbursed the City for all out of pocket costs incurred in review and enforcement of the Application. The amounts of all fees shall be listed in the fee schedule which may be amended from time to time by the City Council. Payment of fees does not affect the Applicant's obligation to construct and Dedicate Public Improvements or meet other obligations of Development approval.
(Ord. No. 2020-02, § IV(Exh. C), 1-8-2020; Ord. No. 2023-27, § 1(Exh. A), 9-12-2023)
Each person who proposes to Develop land shall first request a concept review from the Community Development Department. No Development shall be considered for approval until a written concept plan has been received from the Community Development Department. This provides the Applicant with an opportunity to consult with and receive assistance from the City regarding the regulations and design requirements applicable to the Development of property before submitting a complete Application.
(Ord. No. 2020-02, § IV(Exh. C), 1-8-2020; Ord. No. 2023-27, § 1(Exh. A), 9-12-2023)
A.
For all Development, prior to issuance of a Building Permit, the Development Site must meet the following criteria:
1.
The proposed Development is on a legal Lot.
2.
All required curb and gutter must be installed unless the City allows such installation to be deferred until a later stage of the Development; if deferred, then the location and elevation of curb and gutter must be clearly marked in a manner acceptable to the City and the Applicant must have posted a Site Development Guaranty to secure installation of curb and gutter before a date certain;
3.
All underground utilities located under the Street or access way surface are installed and accepted by the City and appropriate agencies;
4.
Fire hydrants are fully operational in the area of the Development where permits are requested, with adequate culinary water lines fire flow to meet the demands of all properties served by the line;
5.
Streets or access ways are rough graded and provided with an all-weather surface acceptable to the City; and
6.
Continuous access to the area of the requested permit through the project is provided by an access, approved by the City, and improved with an all-weather surface.
7.
Exceptions. A Parcel that contains a Single-Family Dwelling does not need to be on a legal Lot, if the following standards are met.
a.
The abutting Right of Way has been dedicated and meets the Standard Road Profile;
b.
All Public Improvements are in place and meet current standards; and
c.
All utilities are located within an easement.
B.
Limits of Disturbance/Vegetation Protection. A plan for vegetation protection during construction and for revegetation after construction is required. A security will be required to be posted to ensure compliance with the Limits of Disturbance plan.
1.
All Construction Activity must be contained within the Limits of Disturbance line, with the balance of the Property remaining undisturbed. Access to the Limits of Disturbance Area should be along the planned driveway.
2.
Building Pad lines may be specified on some Plats instead of Limits of Disturbance. If Building Pad lines are designated, no part of the new construction may lie outside of the Building Pad line.
3.
Limits of Disturbance must be designated in the field prior to commencement of excavation with temporary fencing approved by the Building Department.
C.
Final Grading Required. No Certificate of Occupancy shall be issued until Final Grading has been completed in accordance with the civil engineering plans approved with the final Subdivision Plat and the Lots recovered with top soil with an average depth of at least six (6) inches which shall contain no particles over two (2) inches in diameter over the entire Area of the Lot, except that portion covered by Buildings or included in Streets, or where the Grade has not been changed or natural vegetation damaged.
D.
Revegetation, Seed and Sod. All disturbed Areas on Lots shall be covered with topsoil and landscaped in accordance with Section 17.06.200.
E.
Debris and Waste. Unless otherwise approved by the City Engineer and Building Official, no cut trees, timber, debris, earth, rocks, stones, soil, junk, rubbish, or other waste materials of any kind shall be buried in any land, or left or deposited on any Lot or Street at the time of issuance of a Certificate of Occupancy, and removal of same shall be required prior to issuance of any Certificate of Occupancy in a Subdivision, nor shall any be left or deposited in any Area of the Subdivision at the time of expiration of the Infrastructure Improvement Assurance or acceptance of Dedication of Public Improvements, whichever is sooner.
F.
Maintenance. Until the Site Development is completed and accepted by the City and all appropriate agencies, the Owner/Applicant shall be responsible for the following in the area where Building Permits have been issued:
1.
Maintaining roads and access ways in a manner that allows continuous access for emergency vehicles; and
2.
Maintaining continuous flow capacities to all relevant hydrants in the Development.
G.
Guaranty. The Applicant shall issue a Guaranty to the reasonable satisfaction of the City Attorney that shall include an amount to ensure completion of all requirements contained in these regulations including, but not limited to, soil preservation, Final Grading, Lot drainage, Landscaping, lawn-grass seeding, removal of debris and waste, Fencing, and all other required Lot improvements.
1.
Governmental units to which a Guaranty applies may file in lieu of said contract or guaranties a certified resolution or ordinance from officers or agencies authorized to act in their behalf, agreeing to comply with the provisions of this Title.
(Ord. No. 2020-02, § IV(Exh. C), 1-8-2020; Ord. No. 2023-27, § 1(Exh. A), 9-12-2023; Ord. No. 2024-01, § I(Exh. A), 2-7-2024)
Property Access Requirements. No Building Permit shall be issued on a Lot or Parcel that is not an improved Lot. There shall be no human occupancy of any Building until all required Infrastructure Improvements have been completed and an occupancy permit has been issued.
A.
Disclosure Required. It shall be unlawful for any person to transfer any portion of an approved Development prior to certificate of occupancy unless that person has advised the prospective buyer that occupancy permits will not be issued until all required improvements are completed.
B.
Occupancy Restrictions. Occupancy will not be allowed until the following conditions are met:
1.
All necessary utilities are installed: e.g., culinary water lines, sanitary sewer, quad duct, flood control facilities, electric power, natural gas, and telephone transmission lines;
2.
Finished road surfaces and pedestrian safety infrastructure are installed.
3.
All building code requirements are met as confirmed by the City Building Official.
4.
Public Safety and Utility Access. Throughout construction and occupancy, all land Uses and Structures shall maintain unobstructed public utility and safety vehicle access in accordance with Appendix D of the International Fire Code in effect in the state of Utah.
(Ord. No. 2020-02, § IV(Exh. C), 1-8-2020; Ord. No. 2023-27, § 1(Exh. A), 9-12-2023)
Off-Street Parking Areas and access management are an integral part of all land use categories in the City of South Salt Lake. Vehicle and bicycle parking, access, loading, and circulation requirements are established to reduce Street congestion, traffic hazards, vehicle, and pedestrian interaction and to develop standards for organized off-Street parking. The regulations in this Section are intended to complement design and Use standards found elsewhere in this Title.
(Ord. No. 2020-02, § IV(Exh. C), 1-8-2020; Ord. No. 2023-27, § 1(Exh. A), 9-12-2023)
A.
Parking Area Development. The minimum off-Street Parking Stalls with adequate provisions for ingress and egress shall be provided at the time when one or more of the following improvements occur:
1.
New site Development.
2.
Structure Additions or Expansions. If a Building Permit is issued for an addition or expansion of a non-residential property that would increase the number of stalls required for the land Use.
3.
Parking areas, driveways, or drive lanes are expanded to include additional property or land area that was not included when the Development was originally approved.
4.
Change of Use to a more intensive Use of a Building through the addition of Dwelling Units, Floor Area, or seating capacity. When the Use of an existing Building or Structure is changed to a different type of Use, parking shall be provided in the amount required for such new Use.
5.
Shared Parking is proposed by two or more land Uses that have different parking patterns and peak parking demand hours. These Uses shall be able to use the off-Street Parking Stalls that are on the same parcel or within the condominium plat throughout the day to reduce the total demand for Parking Stalls.
6.
Existing hard surfacing is removed from the Parking Area and replaced with new hard surfacing as per Section 17.06.140(B).
B.
Existing parking and loading areas. If existing nonconforming parking and loading facilities are below the requirements as established in this Chapter, they shall not be further reduced.
C.
Floor Area. For the purposes of parking requirements, Floor Area shall be defined as the gross footage of the Building measured from the exterior corners. Parking ratios more than one-half will be rounded upward to the next highest whole number. Ratios less than one-half will be disregarded.
D.
Shared Parking. Property Owners and developers are encouraged to work out Shared Parking agreement with adjacent users, that have off-Street Parking Stalls that are on the same parcel or within the condominium plat, wherever possible according to the provisions for Shared Parking contained in Section 17.06.160(F).
E.
Continued obligation to provide Parking Stalls. Compliance with this Chapter is a continuing obligation so long as the Use continues. It shall be unlawful for any Owner of any Building or for any person responsible for providing parking to discontinue, eliminate or reduce a required Parking Area without providing some other approved vehicle Parking Area that meets the requirements of this Chapter, unless approval of the land use authority is obtained for the change in Parking Area.
F.
Nonconforming Parking Areas. The area and number of available Parking Stalls in nonconforming parking facilities shall not be further reduced. Any reconstruction, alteration or other change in Use shall be subject to the provisions of this Chapter.
G.
Parking for persons with disabilities. Parking Stalls for persons with disabilities shall meet the ADA and Uniform Federal Accessibility Standards, shall be provided in off-Street Parking Lot areas, and shall count towards fulfilling the minimum required automobile parking.
H.
Storage. All areas designated for off-Street parking, maneuvering, loading, or Site Landscaping shall not be used for outdoor storage of materials, repair, dismantling or inventory.
I.
Nonconforming, unused, or abandoned drive approaches. When the requirements listed in Subsection (A) are met, nonconforming, unused, or abandoned curb cuts and other drive approaches serving property within any land use district shall be brought into compliance with the provisions of this Chapter.
J.
Shared drive approaches. Shared driveways between and among Lots or Parcels are allowed only if both Owners execute and record an easement in a form approved by the City to ensure access in perpetuity for both Lots and Parcels.
K.
No Tandem parking is allowed, except for in an enclosed garage within the Townhome Overlay District.
(Ord. No. 2020-02, § IV(Exh. C), 1-8-2020; Ord. No. 2022-08, § I(Exh. A), 4-13-2022; Ord. No. 2023-27, § 1(Exh. A), 9-12-2023)
A.
Vehicles must be parked on a Hard Surface. All areas used for parking shall be paved with a Hard Surface of concrete or asphalt material.
B.
Trailer and Recreational Vehicle parking surface. All areas for parking Trailers and Recreational Vehicles shall be accessed from an approved driveway, incorporated into the original development design, and shall be paved with a Hard Surface of concrete or asphalt material. Townhome developments shall not incorporate Trailer or Recreational Vehicle parking.
C.
Commercial vehicle parking. The following vehicles are prohibited from parking in an R-1 land Use district, except for commercial vehicles making or receiving deliveries or vehicles engaged in active permitted Development activities:
1.
Commercial truck, trailer, or construction vehicle exceeding one (1) ton in capacity.
2.
Truck-tractor.
3.
Semi-trailer.
(Ord. No. 2020-02, § IV(Exh. C), 1-8-2020; Ord. No. 2021-06, § XIV, 5-26-2021; Ord. No. 2023-27, § 1(Exh. A), 9-12-2023; Ord. No. 2024-01, § I(Exh. A), 2-7-2024)
A.
Parking plans. Parking Development plans for any proposed Parking Area or facility shall be submitted to the land use authority. For Parking Lot areas that are not associated with new Building construction or redevelopment, the property Owner or its designated agent shall submit a parking Development plan to the City for review. Work shall not commence on Parking Lot improvements until the City has approved such improvements and issued a permit. The parking Development plan shall indicate the following proposed improvements with accurate measurements, including, but not limited to:
1.
Parcel size and dimensions.
2.
Building layout.
3.
Curb cuts for ingress and egress.
4.
Parking dimensions and configuration.
5.
Striping and traffic control markings.
6.
Landscaping as required in this Chapter and other relevant sections.
7.
Lighting.
8.
Drainage calculations and facilities for on-site detention and introduction into the storm sewer.
9.
Traffic or parking study if requested by the City or other government agency.
10.
Any necessary agreements with adjacent property Owners for Shared Parking, ingress and egress, drainage or utilities.
11.
Prior approvals from other government agencies which require approval for ingress or egress.
B.
Parking Area surfacing. Every Lot or Parcel of land used for a vehicle Parking Area or facility shall be paved with impervious asphalt or concrete surfacing.
C.
Parking Area lighting. When an existing Parking Area is proposed for redeveloped, or for additional lighting, an Applicant must submit proposed lighting plans to the City and a photometric study showing the following items:
1.
Location and description of each outdoor lighting fixture, aiming angle and mounting heights.
2.
Description of the outdoor light fixture including specifications of lamp optics and cutoff angles.
3.
A schedule providing for the reduction of on-site lighting during the hours when the facility is not in operation while still providing for levels necessary for security purposes.
4.
All new and replacement lighting shall have directional shields or control devices to reflect light trespass away from adjacent Uses and roadways.
5.
To control light trespass onto adjacent properties or Streets, the maximum illumination, when measured at the Property Line at a height of five feet and facing the light fixture(s), shall be no greater than 0.5 foot-candles.
6.
All Parking Lot lighting shall use a down lit fixture in order to encourage the practice of "dark sky" friendly practices.
D.
Curb. The perimeter of all paved surfaces shall be finished with a six-inch high curbing with ADA ramps where necessary. Bumper curbs shall be installed where appropriate to keep property and vehicles from being damaged and to prevent vehicles from over-hanging sidewalks. Where such curbs serve as a wheel stop for Parking Stalls, not less than thirty-six (36) inches shall be provided in the planting area as overhang clearance for tree locations. Curbs shall be designed to allow storm water to enter Landscaped Areas.
E.
Landscaping. Parking Lot Landscaping shall meet the requirements as found in Chapter 17.06.300.
F.
Drainage. Parking Lots shall be graded and drained to detain and dispose of all surface water as required by the City. The introduction of storm water into the storm sewer system shall meet minimum retention requirements as approved by the City.
G.
Parking Area location. See Chapter 17.07 Design Standards.
H.
Nonconforming driveways. Existing, nonconforming driveways and Parking Lots shall be reconstructed or removed upon Development of a new Building or other substantial site improvement.
(Ord. No. 2020-02, § IV(Exh. C), 1-8-2020; Ord. No. 2023-27, § 1(Exh. A), 9-12-2023; Ord. No. 2024-01, § I(Exh. A), 2-7-2024)
A.
Ingress and egress for non-residential Development.
1.
All Parking Areas shall be designed to provide ingress and egress from a Public Street. Development shall not include parking that would require that a vehicle back onto a Right-of-Way.
2.
All off-Street Parking Lots shall have access to a Public Street by means of a paved driveway.
3.
There shall be a minimum of fifteen (15) feet of driveway length between the public Right-of-Way and the nearest Parking Stall, with no parking allowed within this area.
4.
Parking Stalls located at the end of a dead-end Drive Aisle shall have a minimum of a five-(5) foot back-up area.
5.
Parking Lots shall be designed to include the necessary dimensions and circulation for the on-site maneuvering of fire and refuse trucks as determined by the City Engineer and the Fire Marshal. Fire access shall be continuously maintained for all driveway access and Parking Areas.
6.
As a condition of issuance of each Building Permit, any unused or abandoned drive approaches or portions thereof shall be restored to the original curb and gutter section by the removal of the drive approach and replacement of improvements required for the applicable road profile (i.e. curb, gutter, Park Strip, Landscaping, sidewalk, etc.) designated in this Chapter and the Roadways and Functional Classifications in the General Plan.
B.
Ingress/Egress, Driveway Access and separation.
1.
Residential driveways. Single Family Residential Driveways Located on Local Streets.
a.
Each Parcel shall have one (1) permitted driveway with a maximum width of twenty (20) feet as measured at the flare of the driveway. A second driveway may be allowed for a residence located on a Corner Lot to access a garage or Carport Parking Area in the rear yard.
b.
Driveways shall be a minimum of ten (10) feet wide along any point.
c.
Circular driveways may be allowed in required Front Yard area, along with a second drive leading from the circular driveway to a garage or Carport. Such driveways shall not exceed more than twelve (12) feet in width. To qualify for a circular driveway:
i.
a Lot shall be a minimum of seventy five (75) feet in width;
ii.
the Owner shall maintain approved Landscaping at least fifteen (15) feet in depth from the Front Property Line to the closest edge of the drive.
d.
Driveways on neighboring Lots shall be separated by a minimum of six (6) feet, as measured at the flare of the adjacent driveways. There shall be a minimum of three (3) feet of separation, as measured from the flare to the Property Line.
e.
For Corner Lots, no driveway shall be located closer than thirty (30) feet from on another at the point of curb intersections.
f.
Clear View Areas shall be unobstructed as depicted below:
2.
Townhome Unit Project Driveway Access. Vehicular access for Townhome Units shall be rear loaded, either from an Internal Primary Access Road, where the Unit fronts on a Street identified in the City's Standard Road Profiles, Roadways and Functional Classifications in the General Plan or from a Secondary Internal Access Road, where the Unit Fronts on an Internal Primary Access Road or on significant, platted Open Space.
3.
Multi-Family, commercial and industrial driveways.
a.
Lots with fewer than one hundred (100) feet of Frontage on Arterial or Collector Streets shall have only one (1) approach. The maximum approach width is thirty (30) feet. Shared common drive approaches are encouraged in order to reduce the number of entrances on the Street and to support efficient travel of vehicles.
b.
Lots that have Frontage greater than one hundred (100) feet may have one (1) additional drive approach every one hundred (100) feet. Drive approaches shall not be greater than thirty (30) feet in width, as measured from the flares on each approach.
c.
On Lots that have Frontage greater than one hundred (100) feet, the City Engineer or designee may approve an increase to a drive approach within the Flex, Downtown, or Master Plan Mixed Use Zones for driveways up to fifty (50) feet in width, based upon a traffic or parking study performed by a licensed-Professional Engineer and review of relevant factors, including, but not limited to:
i.
Safety.
ii.
Alternative access points and potential for reciprocal or shared accesses.
iii.
Sight lines.
iv.
Impact on traffic flow.
v.
Site circulation.
d.
Driveways adjacent to intersections on Corner Lots shall meet the following minimum distance requirements as measured from the flare of the drive approach to the point of the corner intersection.
i.
Major/Minor Arterial: One hundred (100) feet.
ii.
Major Collector: One hundred (100) feet.
iii.
Minor Collector: Fifty (50) feet.
e.
Driveways on abutting commercial Lots shall be separated a minimum of twenty (20) feet and no driveway shall be located close to a Property Line than seven (7) feet unless jointly shared (by recorded easement) by adjoining properties.
f.
On Lots that have Frontage greater than one hundred (100) feet, the City Engineer or designee may approve a modification to the drive approach separation requirements based upon a site visit and review of relevant factors, including, but not limited to:
i.
Safety.
ii.
Alternative access points and potential for reciprocal or shared accesses.
iii.
Sight Lines.
iv.
Impact on traffic flow.
v.
Site Circulation.
4.
The following shall be considered when reviewing driveway access points:
a.
The movement of vehicular traffic;
b.
Public Improvements;
c.
Alternative access points and shared access; and
d.
Clear View Area regulations and safety.
(Ord. No. 2020-02, § IV(Exh. C), 1-8-2020; Ord. No. 2021-06, § XV, 5-26-2021; Ord. No. 2022-08, § I(Exh. A), 4-13-2022; Ord. No. 2023-27, § 1(Exh. A), 9-12-2023; Ord. No. 2024-01, § I(Exh. A), 2-7-2024)
A.
Parking requirements for specific Uses. Off-Street parking shall be provided for Uses as indicated in the following matrix.
1.
Uses Not Specifically Listed. Parking requirements for Permitted or Conditional Uses not specifically listed in the following matrix shall be provided in the same ratio as the Use most closely approximating the characteristics of the unlisted Use, as determined by the Community Development Director.
2.
Employee parking for Uses with an employee component shall be determined using the maximum number of employees working on the largest shift.
3.
Uses located in the Transit Oriented Development and Transit Oriented Development - Core district and Commercial Neighborhood district that have a bicycle parking requirement shall provide 1 bicycle parking space per every 15 vehicle Parking Stalls. This requirement supersedes those ratios established in the matrix below.
4.
A traffic or parking study may be requested by the City for Uses that are over 10,000 square feet.
5.
Matrix of Parking Requirements by Use. Uses are grouped into categories that have similar parking requirements. The following matrix indicates the required parking for Uses in the City:
B.
Parking Stall Configuration. The minimum Parking Stall and Drive Aisle configurations are provided in the following table and illustration.
*Drive Aisle widths may be increased when required by the City Fire Marshal or City Engineer.
*Parking spaces located adjacent to walls or columns shall be one foot (1') wider to accommodate door opening clearance and vehicle maneuverability.
C.
Vehicle stacking capacity in drive-thru lanes. The following table shall be used when determining stacking capacity for the following drive-thru Uses:
*More stacking may be required by the City Engineer, subject to a queue analysis completed by a licensed Professional Engineer with a background in transportation engineering or related field based on peak hour traffic.
D.
Parking Reduction Plan. The land use authority may approve a modification in the number of off-Street Parking Stalls required for a Development in accordance with the ratios established in this Section. This section may not be applied in a Townhome Overlay District.
1.
Residential Parking:
a.
The Applicant must submit evidence that the proposed Development meets one (1) of the following below.
i.
Located in Transit Oriented Development - Core (TOD-Core), Downtown, or East Streetcar district; or
ii.
Located within a quarter (1/4) mile of a TRAX or Streetcar station.
b
All Developments must submit a parking and traffic study performed by a licensed Professional Engineer with a background in transportation engineering or related field. In addition, the Development shall submit a detailed description of the proposed, anticipated parking demand, proposed circulation plan, and describe any unique circumstances that would otherwise reduce the parking requirement.
c.
All documentation shall be submitted to the Community Development Department and must comply with all applicable standards contained in this Chapter with the following exceptions:
i.
The standard requirement for residential parking in the district where the development is located.
ii.
The land use authority may consider increases or reductions to standards outlined in the accompanying table. The maximum decrease from any standard parking rate for a Residential Use shall be twenty percent (20%) or 1:1 stall per unit ratio.
iii.
Dedicated visitor parking. Developers shall clearly indicate the location of dedicated visitor parking through directional signage, marked stalls, or other means to be determined in Site Plan review.
d.
The following table provides all eligible parking rate reductions available for Developments that meet the requirements in 17.06.160(D):
2.
Commercial Parking.
a.
Commercial Use transit-oriented Developments may receive up to a twenty percent (20%) reduction in parking when located within the Transit Oriented Development-Core, Downtown, and East Streetcar districts. A Development must comply with at least two (2) additional requirements below to qualify for the parking reductions:
i.
Shared Parking. The Development consists of two (2) or more land Uses that have different parking patterns and peak parking demand hours. Regulations for Shared Parking can be followed as found in Subsection (G) of this Section except for the following additional provisions:
a)
In Mixed-Use Developments, no one Use may consist of less than 20% of the Building square footage; and
b)
Mixed-Use Buildings must be comprised of at least 50% Residential Use.
ii.
Transit passes are provided to 100% of employees at the Development.
iii.
Provisions are made for long-term bicycle storage for residential tenants or business employees. Long-term storage shall consist of facilities such as lockers, indoor Parking Areas, or other secure areas designated for parking.
iv.
Alternative proposals approved by the land use authority that will encourage and provide for increased transit ridership.
E.
Manufacturing and Storage Warehouse Uses may receive up to a twenty percent (20%) reduction in parking when located within the Flex District. The applicant shall provide documentation supporting the proposed reduction. The parking reduction is at the discretion of the City Engineer based on the following standards.
a.
All Developments must submit a parking and traffic study performed by a licensed transportation engineer or related field. In addition, the Development shall submit a detailed description of the proposed Use (include the square footage), hours of operation, anticipated parking demand, proposed circulation plan, and describe any unique circumstances that would otherwise reduce the parking requirement.
b.
Any Change of Use, expansion of use (employees, Use, Development), or transfer of property ownership would require the property owner to resubmit for consideration of any approved parking reduction.
F.
Excessive parking. Commercial Developments shall not have parking in excess of that required by this Chapter, without prior written approval of the land use authority. If more Parking Stalls are requested, written justification of the specific need for more Parking Stalls than the provisions of this Chapter allow may be required. The land use authority may require a parking and/or traffic impact analysis by a licensed Professional Engineer with a background in transportation engineering or related field when the request exceeds 20 stalls or an increase of ten percent (10%).
G.
Shared Parking. Flexibility through Shared Parking may be allowed when two (2) or more Uses within the same Project, with access to the same Parking Stalls, have different parking patterns and peak parking demand hours. These Uses shall be able to use the off-Street Parking Stalls that are on the same Parcel or within the condominium plat throughout the day to reduce the total demand for Parking Stalls. The following schedule of Shared Parking is provided to indicate how Shared Parking for certain Uses might be used to reduce the total parking required. This provision does not apply to Townhome Developments.
1. For Shared Parking purposes weekend shall begin on Friday at 6:00 p.m.
2. Provision shall be made between shared Uses for typical design day for commercial Uses to ensure sufficient parking.
3. Percentage of Shared Parking reduction for entertainment Uses may be increased by the land use authority depending on the intensity of the Use and Compatibility with Shared Parking uses.
1.
To qualify for approval of Shared Parking, Applications shall contain the following:
a.
Proof that all uses subject to the Shared Parking Application are within the same Project;
b.
Location and identity of each Use that will share the Parking Area;
c.
Total parking requirement for each Use;
d.
The projected hours of operation of each Use and the hours during which the peak parking demand will be experienced;
e.
The number of proposed Parking Stalls;
f.
A Site Plan showing that the furthest Parking Stall is no greater than 300 feet from the nearest entrance of each Use intended to share the parking;
g.
A Site Plan showing that the proposed Shared Parking Area will comply with all standards required by this Chapter for Parking Area Development;
h.
A Pedestrian circulation plan that shows connections and walkways between Parking Areas and land Uses; and
i.
No one single Use may be less than ten percent (10%) of the overall Building square footage.
2.
Other Uses. If one or more of the land Uses intended to share parking facilities does not conform to the general land use classifications in the Shared Parking matrix, an Applicant may submit data to specify the principal operating hours of the uses. The land use authority may also take this information into account in determining the appropriate Shared Parking accommodation, if any, for such Uses.
3.
Shared Parking Among Lots Under Different Ownership. When a Shared Parking reduction is to be applied to Uses on several Lots under different ownership, the following shall be provided:
a.
A plan that provides for deed restrictions to ensure the parking and uses cannot be separated without a change in occupancy and a deed release from the City;
b.
Recorded easements that provide, at a minimum, for:
i.
Cross-access for both vehicles and pedestrians among the Parking Areas and connections;
ii.
Allocation of maintenance responsibilities;
c.
Parking for all Uses shall be located within 300 feet from the nearest entrance of each Use intended to share the parking.
d.
Shared Parking among Lots under different ownership may be approved by the land use authority following submittal of a parking Development plan Application and compliance with the provisions detailed above.
(Ord. No. 2020-02, § IV(Exh. C), 1-8-2020; Ord. No. 2021-06, § XVI, 5-26-2021; Ord. No. 2022-08, § I(Exh. A), 4-13-2022; Ord. No. 2022-16, § 1(Exh. A), 9-14-2022; Ord. No. 2023-27, § 1(Exh. A), 9-12-2023; Ord. No. 2024-01, § I(Exh. A), 2-7-2024; Ord. No. 2025-05, § 1(Exh. A), 3-12-2025)
A.
All Buildings with loading docks or loading areas shall meet the following requirements:
1.
All loading and unloading areas must be located behind the Primary Façade and must not be visible from a Public Right-of-Way.
2.
All loading and unloading associated with the Use shall be performed on-site. Such on-site loading area shall be in addition to required off-Street parking and shall not be located within driveways or Drive Aisles.
3.
All loading docks and unloading areas shall be located so that no delivery vehicle will be parked or require maneuvering within the public Right-of-Way. Maneuvering and backing space to the loading dock shall be accommodated on-site.
4.
Public Rights-of-Way shall not be used for loading or unloading.
5.
Each loading area shall not be less than thirty-five (35) feet in length and twelve (12) feet in width. Enclosed or covered loading and unloading areas shall have an overhead clearance of not less than fourteen (14) feet.
6.
Off-Street loading areas shall not block use of required Parking Stalls areas on the Site or adjacent Sites.
7.
Loading/unloading areas shall be asphalt or concrete and constructed to drain and dispose of surface water on-site, away from the Building.
B.
Standing and Passenger Loading Areas. Uses such as daycares, schools, hotels, and places for public assembly shall provide at least one safe off-Street passenger loading/unloading area that is adequately signed and striped. Such passenger loading/unloading areas shall be located at the point of primary pedestrian access from the Parking Lot area to the adjacent Building, or Buildings, and shall be designed in such a manner that vehicles waiting in the loading area do not impede vehicular or pedestrian circulation in the Parking Area. This does not include deliveries such as package delivery and third party food services,
(Ord. No. 2020-02, § IV(Exh. C), 1-8-2020; Ord. No. 2022-08, § I(Exh. A), 4-13-2022; Ord. No. 2023-27, § 1(Exh. A), 9-12-2023)
Temporary Parking Lot may be approved by the City for a special event if the following conditions are met:
A.
Compacted road base, gravel, or recycled asphalt is used;
B.
Signage is provided that designates the temporary Parking Area; and
C.
Use of the Parking Lot is limited in duration, which Use shall not exceed thirty (30) days in any 365-day period.
(Ord. No. 2020-02, § IV(Exh. C), 1-8-2020; Ord. No. 2023-27, § 1(Exh. A), 9-12-2023)
All new Development or change of Use must install parking for bicycles as required in the parking matrix. Required bicycle parking areas shall comply with the following standards:
A.
Bicycle parking shall be provided with racks that allow the frame and one wheel to be locked to the rack with a high security, U-shaped or chain/cable lock.
B.
Racks shall be clearly visible and accessible yet should not interfere with pedestrian traffic or other site furnishings.
C.
Parking areas shall be well-lit for theft protection, personal security, and accident prevention.
D.
Location of bicycle parking shall be separated from vehicle parking and roads with space and physical barriers in order to prevent potential damage to parked bikes or vehicles. Bicycle parking shall not be located on sidewalks or in areas that obstruct pedestrian traffic flow.
E.
Parking areas shall be located within one hundred (100) feet of the primary Building entrance.
F.
Where feasible, the use of existing overhangs or covered areas are encouraged to provide weather protection for bicycle parking areas.
(Ord. No. 2020-02, § IV(Exh. C), 1-8-2020; Ord. No. 2023-27, § 1(Exh. A), 9-12-2023)
A.
Designated Parking Areas shall be continually maintained to properly function for the intended vehicle parking Use.
B.
When surfacing materials are removed, changes are made to the Grade, or changes that would require a review by the City, the property Owner or agent shall submit a parking Development plan as outlined in Section 17.06.140, and obtain a permit from the City to ensure that the replaced surfacing and drainage meets current City regulations.
C.
Parking Lot striping for stalls and pedestrian crossings shall be maintained on a regular basis so that stripping is visible.
D.
Slurry seals, seal coating, patching or crack sealing does not require a permit for maintenance unless such work changes the Grade or Retention Areas of the Site.
(Ord. No. 2020-02, § IV(Exh. C), 1-8-2020; Ord. No. 2023-27, § 1(Exh. A), 9-12-2023)
A.
Purpose. The purpose of this Chapter is to outline Landscaping requirements that establish minimum standards to:
1.
Improve the City's image and identity;
2.
Increase the Compatibility of adjacent Uses and minimize the harmful impacts of noise, dust, debris, and light pollution;
3.
Enhance the visual appearance of Streetscapes;
4.
Encourage innovation and design;
5.
Establish opportunities for sustainable storm water management;
6.
Encourage water conservation;
7.
Support a diversity of plants suited to local conditions; and
8.
Sustain and improve the City's urban forest.
B.
Applicability. This Chapter applies to all new Development and Structure additions.
1.
Wherever Landscaped Areas are required by this Chapter, a Landscape Plan shall be submitted to the City.
2.
A Landscape Plan is required for any Application for a Building Permit or certificate of occupancy. A Building Permit will not be issued without submission and City approval of a Landscape Plan.
3.
The Landscaped Areas as required by this Section shall be installed on property where Landscaped Areas are not in place or are non-conforming when:
a.
New construction occurs on undeveloped, vacant, or cleared property.
b.
A Conditional Use permit is issued, or a change of Use occurs. The land use authority shall make installation of Landscaping a condition of approval.
c.
A Building Permit is issued for any addition, expansion, or intensification of any property other than an existing Single-Family home that increases the Floor Area of a Building and/or the parking requirement by fifty (50) percent or more.
d.
A Building Permit is issued for any addition to a Single-Family residence that increases the Floor Area of the residence by seventy five (75) percent or more. This standard does not apply to expansion or addition of accessory Buildings on residential properties.
e.
A change of Use occurs.
f.
A Parking Area is expanded by fifteen (15) percent, or a minimum of seven (7) stalls.
g.
An existing property is re-landscaped.
Public parks, recreation facilities, and open spaces in any district are exempt from the provisions of this Chapter.
C.
Modification. Existing Structures shall comply with the standards contained in this Chapter, to the maximum extent possible.
D.
General Landscape Requirements.
1.
At a minimum, Landscaping is required in all Yard areas, along the perimeter of Parking Areas, in front of Buildings, and in the Front Setback of any improved property not used for parking, driveways, walkways, or approved display areas.
2.
General Design Standards.
a.
Landscape Plans shall be prepared and approved based on design standards in this Chapter and other applicable City requirements.
b.
Tree and Shrub Requirements.
i.
Not less than seventy five (75) percent of the trees specified on the Landscape Plan shall be water conserving species.
ii.
Deciduous and ornamental trees shall have a minimum two (2)-inch caliper trunk size at the time of installation.
iii.
Evergreen trees shall have a minimum height of six (6) feet at the time of installation. Evergreens shall be incorporated into a Site where a Buffer is required between adjacent Uses or busy roadways.
iv.
Shrubs shall have a minimum height or spread of eighteen (18) inches at the time of installation, depending on the plant's natural growth habit (after two (2) years of growth). Plants in five (5)-gallon containers will generally comply with this standard.
v.
Existing trees that are non-invasive and not noxious and that are preserved and incorporated into the Landscape Plan shall be credited toward the minimum number of trees required by this Chapter. Trees must be in healthy condition and free of injury to receive this credit. Any credited tree that is not preserved or is significantly damaged during construction shall be removed and replaced with four (4) trees, each with a minimum caliper of four (4) inches. Tree replacement shall conform to the tree and shrub requirements.
c.
Plant and Turf Grass Requirements.
i.
Annual and perennial plants shall be installed from transplants, and not seeded on site.
ii.
Only water conserving varieties of Turf Grass shall be used in the City.
iii.
No more than thirty five (35) percent of the front and side yard landscaped area in any new single-family residential development may be Turf Grass.
iv.
No Turf Grass is permitted in the total Landscaped Area in any new townhome, multi-family residential, commercial or flex development, outside of active recreation zones.
v.
No Turf Grass is permitted on Park Strips or areas less than eight (8) feet in width in new development.
vi.
Turf Grass may be seeded on site, but the seeded area must be one hundred (100) percent covered with Turf Grass within one (1) year.
vii.
Live Plant Material shall comprise at least seventy five (75) percent of the total Landscaped Area for all properties.
d.
Mulch and Decorative Rock Requirements.
i.
Landscaped Areas may include mulch and decorative rock in accordance with Park Strip requirements and specific Use requirements specified in this Chapter.
ii.
If ornamental gravel is utilized, it must be contained within durable borders or edging.
iii.
At least three to four (3 to 4) inches of mulch, permeable to air and water, shall be used in planting areas to control weeds and improve the appearance of the landscaping.
e.
Swales and Detention or Retention Basins.
i.
Swales and detention or retention basins required for storm water management shall be landscaped with suitable trees, shrubs, groundcover, perennials, or other Landscaping materials, and/or decorative paving. Swales may not be used in the Setbacks of Townhome Developments.
ii.
Live Plant Material shall cover at least seventy five (75) percent of the area of the swale or detention or retention basin.
iii.
Swales, detention and retention basins shall not be deeper that than 1.5 feet.
f.
Berming is prohibited.
g.
Irrigation. Permanent irrigation systems are required wherever Landscaping is required by this Chapter. Irrigation systems shall meet the standards below.
i.
All irrigation shall be appropriate for the designated plant material to achieve the highest water efficiency. Drip irrigation or bubblers shall be used except in Turf Grass areas. Drip irrigation systems shall be equipped with a pressure regulator, filter, flush-end assembly, and any other appropriate components.
ii.
Each irrigation valve shall irrigate landscaping with similar site, slope, and soil conditions, and plant materials with similar watering needs. Turf Grass and planting areas shall be irrigated on separate irrigation valves. In addition, drip emitters and sprinklers shall be placed on separate irrigation valves.
h.
Clear View Requirements. All landscape elements are subject to the Clear View Area requirements.
E.
Landscape Plan Requirements.
1.
Content of Landscape Plan. All Landscape Plans submitted for approval shall be drawn in accordance with the South Salt Lake Community Development Department's plan submittal requirements. The Landscape Plan shall include:
a.
The location and dimensions of all existing and proposed Structures, Property Lines, easements, planting areas, Buffers, Parking Lots, driveways, roadways and Rights-of-Way, sidewalks, bicycle paths, freestanding signs, waste enclosures, bicycle parking areas, fences, walls, ground level utility equipment, recreational facilities, and any other freestanding Structure.
b.
The location, spacing, quantity, size, and common and botanical names of all proposed plants.
c.
The location, size, and common and botanical names of all existing trees and other plants on the property and in the Park Strip, either to be retained or removed.
d.
Existing and proposed grading of the site at one (1)-foot contour intervals including any proposed landscaped Berms.
e.
Elevations for fences and retaining walls proposed for location on the site.
f.
Elevations, cross sections, and other details as determined necessary by the land use authority.
g.
The irrigation plan, drawn on a separate sheet.
h.
Summary data indicating the area of the site in the following classifications:
i.
Total area and percentage of the site in Landscaped Area.
ii.
Total area and percentage of the site in Turf Grasses.
iii.
Total area and percentage of the site in water-efficient plant species at mature growth.
iv.
Total area and percentage of the site in planting area.
2.
Landscape Maintenance Standards.
a.
Responsibility. The property Owner shall be responsible for the maintenance, irrigation, repair and replacement of all plants, turf, trees, and Landscaping materials required in this Chapter. The property Owner shall also keep their property free of uncontrolled weed and volunteer plant growth.
b.
Landscaping Materials. Landscaping shall be maintained in good condition in a healthy, neat, and orderly appearance. Plants and trees that are dead or dying shall be removed and replaced. Landscaped Areas shall be regularly irrigated, mowed and pruned as needed, be kept free of weeds, dead plants, garbage, and debris.
c.
Pruning Required. Trees, hedges, shrubs, and plants near public sidewalks and roads shall be pruned and maintained so that the public Right-of-Way is unobstructed. Shade trees or other plantings that project over any sidewalk shall be maintained clear of all branches between the ground and a height of six (6) feet for that portion of the plant located over the sidewalk. Shade trees and plantings that project over any Street or access road shall be maintained free of any plant material extending over the Street to a height of fourteen (14) feet from the Grade of the Street or access road.
d.
Irrigation Systems. Irrigation systems shall be maintained in good operating condition to promote the conservation of water.
3.
Landscape Requirements for Park Strips.
a.
Intent. The intent of the Park Strip Landscaping standards is to enhance the aesthetics of City Streets, to increase safety along roadways, to prohibit materials that may cause harm or injury to pedestrians and vehicles, to provide safe and convenient access across Park Strips to and from parking and pedestrian access, to allow access for repair and maintenance of public utilities, and to uphold Clear View Area requirements.
b.
Applicability. Park Strip standards apply to all properties in the City, including vacant Lots that have curbs and/or gutters along Street Frontages. Owners of property on Streets that lack curb and gutter are not required to maintain formal Landscaping within the public Right-of-Way, unless new curb and gutter is required as new Development occurs.
c.
Installation. All Park Strips shall be landscaped and continuously maintained by the abutting property Owner. For permits involving new construction or a change of Use, Park Strip Landscaping shall be shown on the required Landscape Plan.
d.
Park Strip Design Standards Table:
F.
Landscape Requirements Along Urban Corridor Streets.
1.
Applicability. The Landscaping standards in this Section shall be required for all properties with Frontage along State Street, 2100 South, 3300 South, 3900 South, 900 West, 300 West, 700 East, and Main Street.
2.
Design Standards: 2100 South, 3300 South, 3900 South, 900 West, 300 West, 700 East, and Main Street (excluding Downtown, the Crossing MPMU, and Townhome Overlay District).
a.
Area. Installation of a minimum of fifteen (15) feet of Landscaping along the entire length of the property between the back of the sidewalk along the urban corridor Street and any fence, Parking Area, or Structure on the Site is required.
b.
Prohibited Uses and Activities. Parking, display, sales, storage, Structures, or temporary signage are not allowed in the Landscaped Areas.
c.
Approved access driveways and walkways are allowed to cross the landscape area.
d.
Outdoor seating areas up to three hundred (300) square feet in area for Restaurants and similar public Uses are allowed in the landscape areas.
e.
Live plant material coverage of at least seventy five (75) percent.
f.
A minimum of one (1) tree is required for every one thousand (1,000) square feet of Landscaped Area.
3.
Design Standards: State Street, Downtown, the Crossing MPMU and Townhome Overlay Urban Landscape Area.
a.
Area. Installation of a minimum width of ten point five (10.5) feet of concrete sidewalk and street landscaping (measured from back of curb) along the entire length of the property between the back of the curb along dedicated Streets to any fence, Parking Area, or Structure on the Site is required.
b.
Prohibited Uses and Activities. Parking, display, sales, storage, Structures (other than required raised planters), or temporary signage are not allowed in the Landscaped Areas.
c.
Approved Local Access Roads and walkways are allowed to cross the urban landscape area.
G.
Landscape Requirements for Parking Lots.
1.
Intent. Landscaping is required for Parking Areas in order to break up large expanses of pavement, to provide relief from reflected glare and heat, to guide vehicular and pedestrian traffic, and to efficiently and sustainably retain storm water.
2.
Applicability. All Hard-Surfaced Parking Areas, including those for vehicle sales, with fourteen (14) or more Parking Stalls shall provide Landscaping in accordance with the provisions of this Section. Smaller Parking Areas shall not be required to provide Landscaping other than Landscaping required for Park Strips, Buffers, and front yards.
3.
Parking Lot Landscaping Standards.
a.
General Requirements.
i.
Site Plan Required.
ii.
All Landscaping shall meet Clear View Area requirements.
iii.
Landscaped Areas shall be protected by concrete vertical curbs. Curbs shall be designed to allow storm water to enter the Landscaped Area. Where such curbs serve as a wheel stop for Parking Stalls, not less than 36 inches shall be provided in the planting area as overhang clearance for tree locations.
iv.
Pedestrian paths in Parking Lots, with the exception of crosswalks, shall be bordered by landscaped Park Strips with a minimum width of three (3) feet, in accordance with the commercial or industrial Park Strip standards of this Chapter.
b.
Interior Landscaping.
i.
Area. Not less than five (5) percent of the interior of a Parking Area shall be devoted to Landscaping.
ii.
Interior Landscaping Design Standards.
a)
Driveway buffers shall be landscaped. The landscaping shall be a minimum of eight (8) feet in width, as measured from back of curb to back of curb and shall run the length of the driveway.
b)
Surface Parking Lots containing sixty (60) or more customer stalls shall have landscaping islands every fifteen (15) stalls or median islands every two (2) rows. Shade trees shall be provided at no less than one (1) tree per ten (10) Parking Stalls. Tree wells shall be a minimum of five (5) feet in radius measured from the center of the tree trunk.
iii.
Perimeter Landscaping. Where a Parking Lot is located within a required yard area or within twenty (20) feet of a Lot Line, perimeter Landscaping shall be required along the perimeter of the Parking Lot. Perimeter Landscaping must be at least seven (7) feet in width, as measured from the back of the Parking Lot curb. At least one (1) tree shall be planted for each four hundred (400) square feet of the landscaped Perimeter Landscaping shall be planted.
a)
Public right-of-way shall have eight (8) feet of landscaping.
b)
A non-Single-Family Residential Use shall have eight (8) feet of landscaping.
c)
A Single-Family Residential Use shall have ten (10) feet of landscaping.
H.
Landscape Requirements for Buffers.
1.
Intent. Buffers are used to mitigate the transition between Development types and incompatible Uses.
2.
Applicability. All Buffers required by other sections in this Code shall be landscaped.
3.
Buffer Design Standards. Landscape Buffers shall be reserved for planting and fencing. No parking, driveways, or Accessory Structure shall be permitted, unless specifically authorized through the Site Plan review process. Landscape Buffers may be located within required Setbacks. Where both landscape Buffers and Parking Lot Landscaping is required the more restrictive shall apply.
4.
At least one (1) tree shall be planted for each four hundred (400) square feet of the landscaped Buffer shall be planted.
I.
Specific Landscape Standards.
1.
Design Standards.
a.
Single-Family Buildings.
i.
Front yard and corner side yard Landscaped Areas required to be landscaped shall be landscaped with suitable trees, shrubs, groundcovers, perennials, or other Landscaping materials. Plants, not including tree canopies, shall cover at least seventy five (75) percent of the front and/or corner side yard area at maturity.
ii.
Each front yard shall contain at least two (2) trees.
iii.
Water features, landscape boulders, decorative rocks, gravel, and organic mulch are permitted but shall not be considered a substitute for plants.
b.
Multi-Family Developments.
i.
Landscaped Areas. Yards, Setbacks, Park Strips, required Buffers, required open space, and Parking Areas shall be landscaped as required in this Chapter. Landscaping shall be used to screen ground level utility equipment from view of Streets, sidewalks, or walkways to the greatest extent possible. No Turf Grass is permitted in the total Landscaped Area in any new multi-family residential development, outside of active recreation zones.
ii.
Plant Coverage. All required Landscaped Areas shall be landscaped with suitable trees, shrubs, groundcovers, perennials, or other Landscaping materials. Plants, not including tree canopies, shall cover at least seventy five (75) percent of required Landscaped Areas.
iii.
Site Trees. A minimum of two (2) trees per one thousand (1,000) square feet of Landscaped Area is required, in addition to requirements for Yards, Setbacks, Park Strips, required Buffers, and Parking Areas described in this Chapter.
iv.
Water features, landscape boulders, decorative rocks, gravel, and organic mulch are permitted but shall not be considered a substitute for plants.
v.
If ornamental gravel is utilized, it must be contained within durable borders or landscaped edging.
c.
Townhome Developments.
i.
Landscaped Areas. Yards, Setbacks, Park Strips, required Buffers, required Common Open Space, Usable Open Space, and Parking Areas shall be landscaped as required in this Chapter. Landscaping shall be used to screen ground level utility equipment from view of Streets, sidewalks, or walkways to the greatest extent possible. No Turf Grass is permitted in the total Landscaped Area in any new townhome development, outside of active recreation zones.
ii.
Plant Coverage. All required Landscaped Areas shall be landscaped with suitable trees, shrubs, groundcovers, perennials, or other Landscaping materials. Plants, not including tree canopies, shall cover at least seventy five (75) percent of required Landscaped Areas.
iii.
Site Trees. Trees are required every twenty (20) feet in all Setback and Buffer areas, both sides of the Local Access street, in addition to requirements for Yards, Open Space, and Parking Areas described in this Chapter.
d.
Commercial and Flex.
i.
Landscaped Areas. Landscaped Areas shall comprise not less than fifteen (15) percent of a commercial or professional office site. Landscape requirements for Buffers, Parking Areas, Park Strips, and additional Landscaping along urban corridor Streets as required in this Chapter may be included as part of the overall site requirement. Landscaping shall be used to screen ground level utility equipment from view of Streets, sidewalks, or walkways to the greatest extent possible. No Turf Grass is permitted in the total Landscaped Area in any new commercial or flex development, outside of active recreation zones.
ii.
Plant Coverage. All required Landscaped Areas shall be landscaped with suitable trees, shrubs, groundcovers, perennials, or other Landscaping materials. Live plants, not including tree canopies, shall cover at least seventy five (75) percent of required Landscaped Areas.
iii.
Site Trees. A minimum of two (2) trees per one thousand (1,000) square feet of Landscaped Area is required, in addition to requirements for Yards, Setbacks, Park Strips, required Buffers, and Parking Areas described in this Chapter.
iv.
Water features, landscape boulders, decorative rocks, gravel, and organic mulch are permitted but shall not be considered a substitute for plants. Landscape boulders shall only be allowed as a focal feature or may be used as a protective device from vehicle traffic.
v.
If ornamental gravel is utilized, it must be contained within durable borders and arranged in a decorative pattern that incorporates varying sizes, types, or colors of gravel.
(Ord. No. 2020-02, § IV(Exh. C), 1-8-2020; Ord. No. 2021-06, § XVII, 5-26-2021; Ord. No. 2022-08, § I(Exh. A), 4-13-2022; Ord. No. 2022-16, § 1(Exh. A), 9-14-2022; Ord. No. 2023-27, § 1(Exh. A), 9-12-2023; Ord. No. 2023-29, § I, 10-12-2023; Ord. No. 2023-31, § I(Exh. A), 10-25-2023)