AIPD Guidelines
Art in Private Development: The goal of the City of Tempe's Art in Private Development Ordinance (AIPD) is to beautify the community with a wide variety of high-quality art installations. AIPD enhances the identity and character of the Tempe community making it more appealing to residents and helps to further attract visitors.
Tempe Zoning and Development Code, Section 4-407 www.tempe.gov/zoning
The property owner(s) of any project (including mixed-use) that contains more than fifty thousand (50,000) square feet net floor area of commercial or office use within any zoning district (including a mixed-use project) or is a phase of a larger project approved after February 24, 1990, which contains a total of more than fifty thousand (50,000) square feet net floor area of commercial or office use within any zoning district, or an expansion of the net floor area of commercial or office use of any project (including mixed-use) that results in the project containing a total of more than fifty thousand (50,000) square feet net floor area of commercial or office use within any zoning district, shall contribute to Art in Private Development.
The art contribution shall take the form of either on-site installation of exterior artwork or an equivalent cash donation to the Tempe Municipal Arts Fund. All art contributions shall conform to the City of Tempe Art in Private Development Guidelines adopted by the City Council (see Appendix D). The developer's investment in artwork is based on the amount of square footage of the net floor area dedicated to commercial and/or office uses, and is adjusted on July 1 of each year based on the Consumer Price Index for All Urban Consumers (CPI-U).
Eligibility and Restrictions
1. Artwork:
On-site and publicly accessible installation of exterior artwork commissioned by the
applicant
2. Arts Fund Contribution:
An equivalent monetary donation to the Tempe Municipal Arts Fund
ARTWORK ELIGIBILITY. "Artwork" or "Work of Art" is defined as an original artist designed and produced work that is imported into or set at the building site. Developers must hire a Professional Artist for the creation of the Artwork. The Artist is defined as a professional based on their body of work including commissions, exhibits, publications, collections, and educational background. Exclusions include persons primarily working the professional fields of architecture, engineering, design, or landscape who do not have a record of art-based accomplishments as described; persons with a business interest in the development project outside of the creation of the Artwork; and relatives of anyone with a financial interest with respect to the project at-large.
Developers opting to commission a Work of Art to fulfill the Art in Private Development requirement must ensure the Artwork shall be publicly visible and accessible at all times. If Artwork is placed in the interior of a building, the location cannot require payment for entry to view and experience the Artwork, and the Artwork must be in an area that invites the public to loiter as appropriate. Public Art is typically large-scale and may include sculpture, murals, mosaic, ceramic, installation, video, photography, works of light, integrated artist designed land works, and other works determined by the Tempe Arts and Culture Department which will satisfy the requirement.
Each proposed Artwork will require the following for review by the City:
■
Artist Credentials: Including resume, examples of past work, and any other appropriate materials that speak to the artist's professional history.
■
Budget: Itemized budget that meets the required art investment for the development which may include the artist's budget (fees, materials, assistants labor costs, insurance, permits, taxes, legal and business expenses), fabrication and installation of the Artwork, site preparation for the Artwork, structures enabling the artist to display the Artwork, acknowledgement plaque identifying the artist, Artwork, and the development, and any subcontractor fees that relate to the Artwork (engineering, graphic design, welders, etc.)
■
Materials: Materials used for the Artwork must be reviewed by City of Tempe Public Art Staff with regards to viability and budget constraints.
■
Maintenance Plan: All proposed Artworks should include a plan for future maintenance and cleaning
schedule where appropriate.
NOTE: Costs for maintaining and operating Artwork shall not be included in the budget.
■
Artist Agreement with Owner: Any agreement whether conceptual or complete between the owner and the artist for work to be addressed must be provided in the submittal package.
RESTRICTIONS (Proposals that will not meet the public art requirements):
■
Business logos or art that incorporates a logo or portion of a logo
■
Directional or way-finding elements such as supergraphics and signage
■
Mass-produced "art objects" such as fountains, statuary, or playground equipment
■
Standard landscape or hardscape elements which would normally be associated with the project
■
Decorative architectural elements that are designed by the building architect as opposed to an artist commissioned for this purpose
Tempe Municipal Arts Fund Contribution:
Developers have the option of paying into the Tempe Municipal Arts Fund in lieu of
using the AIPD fund for the creation of a work of art on their property. When choosing
this option, the City will, in its discretion, endeavor to use the contribution for
a project or program near the building that is connected to the contribution. When
this option is not possible, the contribution will be used to program arts throughout
the City of Tempe.
To view images of completed Artwork, visit: www.tempe.gov/publicartmap
For assistance and questions, contact Rebecca Blume Rothman, Public Art Manager (480) 350-2827 Rebecca___rothman@tempe.gov
Process
1.
Site Plan Review (SPR) - Applicant electronically submits project plans for City to review. Applicant will receive the AIPD Guidelines, an explanation of the AIPD process and AIPD staff contact information.
2.
Contact Public Art Office - Discuss concepts, budget, location, and visibility of proposed Artwork as well as possible artists. Staff Contact: Rebecca Blume Rothman, Public Art Manager (480) 350-2827 rebecca___rothman@tempe.gov
3.
Select Professional Artist - or - determine amount of in lieu contribution to the Tempe Municipal Arts Fund. If creating Artwork, Artist must show educational background in the arts, and/or arts accomplishments such as gallery or museum exhibits, and completion of public art projects If opting for monetary contribution, alert AIPD staff contact of intent to contribute to the Tempe Municipal Arts Fund.
4.
Development Plan Review (DPR) - Plans are submitted for formal entitlement processing of design of project. Indicate where the Artwork is proposed (generally on the site plan, landscape plan, and elevations — if applicable). The DPR submittal should include a brief description of the art type (i.e., not a completed Artwork design — but identify a sculpture, bridge, entry way, shade structure, mural, etc.). This explanation assists the Development Review Commission in understanding that the art is being considered as part of the overall design of the site and to ensure that there are no conflicts with retention, landscape, irrigation, public rights-of-way, etc.
5.
Submit Artwork Plans to Public Art Office- Include the following: (1) Narrative description of proposed Artwork, (2) Scaled construction drawings or models of the Artwork including site plan and landscape plan showing the proposed Artwork in the development's context, (3) Detailed budget, (4) Artist's resume, (5) Artist contract between the developer and artist, and (6) Maintenance plan and material specifications for the proposed Artwork.
6.
AIPD Committee Review - Artwork plans are reviewed internally by a committee comprised of Public Art and Planning staff as well as a member of the Tempe Arts and Culture Commission (TACC). The committee reviews the proposed Artwork plan, its visibility to the public, and its context within the development. Developers may be asked to bring their art concept for review before the Tempe Arts and Culture Commission for a formal presentation prior to beginning design development. This request is typically based on the size, scale, and location of the proposed project and is determined by the internal committee review.
7.
Contract Submittal - Developers are required to submit the final copy of the artist agreement to the Public Art staff within two (2) months of TACC review. This is to allow for scheduling and planning of the design development, fabrication, and art installation in a timely manner.
8.
Plan Check (PC) - Building construction set reviewed for structural, mechanical, electrical, planning, etc. Artist construction documents must be sent to Planning Review for review and approval.
9.
Building Permit (BP) - Released after all issues in development construction document set are resolved, which may include Artwork if Building Permit (BP) is required. In the rare event of a delay, a waiver must be approved in advance to allow a Building Permit (BP) to be issued prior to artist's construction documents. Artwork location should be identified on site plan and coordinated on plan set (landscape, irrigation, electrical, etc.).
10.
Inspection of Installed Artwork - Contractor / Artist / Representative of an AIPD installation must schedule and pass a Planning Final (699) field inspection prior to Building Final approval (CofO).
11.
Certificate of Occupancy (CofO) - Artwork must be installed and completed before a Certificate of Occupancy can be
issued. If there is a need to delay due to artist / installation schedule, a Temporary
Certificate of Occupancy (TCO) may be issued contingent upon an agreed deadline to
complete and install the Artwork.
NOTE: CofO / TCO issuance are at the discretion of the field inspection team, based on
approved plans and public safety requirements.
12.
Final notification to Public Art Office with high resolution images of Artwork.
AIPD installations are published in the City of Tempe www.tempe.gov/publicartmap
(July 1, 2018; Ord. of 02-01-2020(1); March 3, 2021; Amd. of February 1, 2025)
A.
Photometric Plan. A photometric plan includes the following:
1.
Photometric calculations detailing all exterior security lighting, shall be submitted and provided on a fifty percent (50%) screened landscape plan that has been approved by the Design Review Board, drawn on twenty four (24) inch by thirty six (36) inch format prepared to scale. Point to point photometric calculations shall be calculated at intervals of not more than ten (10) feet at ground level and may also be required at six (6) feet above finish grade;
2.
Include light fixture schedule on photometric plan;
3.
A copy of all cut sheets for light fixtures shall be submitted and marked as to which information and data applies to the specific luminaire, including the lamp manufacturer; and
4.
Photometric calculations shall be based on the "mean" light output per the manufacturer's of the specified lamp, including ballast depreciation and contamination factors. Light Loss Factor (LLF) shall be calculated at .68 for Metal Halide (MH) and .72 for High Pressure Sodium (HPS). All luminary photometric data formatted in accordance with the Illumination Engineering Society (I.E.S.) file compiled by an approved testing laboratory.
Tempe's "Standard Shared Parking Model" can be used as a basis for predicting the Parking Demand for a particular mix of uses on a site. The model assumes that every separate use will actually need the full amount of parking that is called for by the ratios in the Ordinance at some point (called the "peak" period for the use) during the day. For example, in the real world, some uses (like nightclubs) peak in the evening; others (like offices) peak in the morning or afternoon. Where different uses need parking at different times of the day, there is an opportunity for them to share parking. This means that the total number of stalls needed to serve a "mixed use" site (the Parking Demand) may be significantly less than the number of stalls that would have to be built if each of the uses had to provide parking on its own (the Parking Required by this Code).
The Standard Shared Parking Model is a tool for estimating the Parking Demand of a specific mix of uses. It is called "standard" because each of the demand curves represents the parking needed for an average, typical use, based on studies and observations collected by staff over a number of years. The "curves" are represented below as a table showing the percent of the Code requirement for such uses, by hour of day.
These curves can be adapted to fit the specific needs of a major tenant on the site. The advantage of doing this is that the mode will be more accurate in predicting that tenant's share of the parking throughout the day. The disadvantage is that the model will be unique, and may not work as well if that tenant is replaced by an average, typical user in the future. In addition to changing the curves, one might also consider the impact of transit availability (reliable mass transit serving the site), trip reduction programs (van and carpooling, etc.) and captive market effects (where users serve patrons who are already on site), as well as any users who might need more parking than the Code ratios require. Any modifications to the standard model should be based on a "professional parking analysis and management study", as described in a companion information sheet available from the Development Services Department.
Enclosed: Instructions on how to apply model.
PARKING ANALYSIS AND MANAGEMENT STUDY
Section 4-604 of Tempe's Zoning & Development Code refers to submittal of a professional Parking Analysis and Management Study where applicant is basing his parking on the predicted demand, rather than on the amount required by Code. To assist in the process, staff has prepared a more detailed description of the elements in such a Study, in a format that could be adapted as needed for each site:
To use the model, take the following steps:
1.
Verify that all uses on site have equal access to all parking spaces on site, that there are cross access easements across all property lines, and that there are no legal impediments to sharing the parking.
2.
List all uses on the site.
3.
Parking Required: Calculate the parking required for each use according to the ratios in the Code.
4.
Adjust for transit, trip reduction, captive market or surplus need effects; if you change the model, state your assumptions clearly.
5.
Group the uses according to the categories in Table I.
6.
Add up the total number of spaces required for each group.
7.
Multiply that number times the percent shown in the Tables ("80" means 80% or .8 of the Code requirement) for each hour for each group.
8.
Add up the total number of spaces needed by hour of day.
9.
Parking Demand: Find the maximum number of spaces needed by hour of day: this will represent the minimum number of spaces that the particular mix will actually need.
10.
Parking Provided: Add between 5% (for larger sites with stable Demand throughout the year) and 10% (for small sites with a Demand that fluctuates throughout the year) to the Parking Demand to get a realistic estimate of the amount of parking you should provide for this mix of uses.
ZONING
City Code, Chapter 35 - Zoning and Development Fees
FEE SCHEDULE
Footnote 8
Pursuant to Resolution No. 2005.26, the City council approved annual fee adjustments
based on the annual United States Department of Labor, Bureau of Labor Statistics
Consumer Price Index—All Urban Consumers, West Region, effective at the beginning
of each fiscal year beginning July 1, 2006
Footnote 9
Total fee includes the addition of a 9% Technology & Training Fee pursuant to Resolution
No. R2020.XX, which is not subject to the annual CPI fee adjustment.
(July 1, 2018; July 1, 2021; July 1, 2022; July 1, 2023; July 1, 2024; Ord. No. O2024.58, effective January 18, 2025; July 1, 2025)
ORDINANCE NO. 2003.36
AN ORDINANCE OF THE CITY COUNCIL OF THE CITY OF TEMPE, ARIZONA, REPEALING ZONING ORDINANCE NO. 808 AND ADOPTING THE CITY OF TEMPE ZONING AND DEVELOPMENT CODE ESTABLISHING LAND USE CLASSIFICATIONS; DIVIDING THE CITY INTO DISTRICTS; IMPOSING REGULATIONS, PROHIBITIONS AND RESTRICTIONS FOR THE PROMOTION OF HEALTH, SAFETY, MORALS, CONVENIENCE, AESTHETICS, AND WELFARE.
WHEREAS, it has been found necessary for the public health, safety or general welfare of the City of Tempe that an amended Zoning Ordinance shall be enacted, and
WHEREAS, by authority conferred by Title 9, Chapter 4, Article 6.1, Arizona Revised Statutes, the City of Tempe is authorized and empowered to enact such an ordinance;
NOW THEREFORE, BE IT ORDAINED BY THE CITY COUNCIL OF THE CITY OF TEMPE, ARIZONA, as follows:
Section 1. That Zoning Ordinance No. 808 adopted by the City Council on September 2, 1976 is hereby repealed in its entirety.
Section 2. That the City Council hereby adopts the Zoning and Development Code, copies of which are on file in the office of the City Clerk.
Section 3. That all rights or remedies of the City of Tempe are expressly saved as to any and all violations of such repealed ordinance and all amendments thereto. Courts of competent jurisdiction shall have all the powers that existed prior to the effective date of the Zoning and Development Code as to all violations that have accrued at the time of the effective date of the Code. All existing violations of the Zoning Ordinance of the City of Tempe, Arizona, Ordinance No. 808, and all amendments thereto, which may otherwise become nonconforming uses under this Ordinance, shall not become legal nonconforming uses.
Section 4. If any section, subsection, sentence, clause, phrase or portion of the Zoning and Development Code is for any reason held to be invalid or unconstitutional by the decision of any court of competent jurisdiction, such decision shall not affect the validity of the remaining portions thereof.
PASSED AND ADOPTED BY THE CITY COUNCIL OF THE CITY OF TEMPE, ARIZONA, this _______ day of ______________, 2005.
ATTEST:
APPROVED AS TO FORM:
Apache Boulevard Redevelopment Plan
Arizona Department of Water Resources (ADWR), Management Plan (Phoenix)
Arizona Nurseryman Association Standards
Arizona State Revised Statutes (ARS)
City Code, City of Tempe (TCC)
Public Works Department Standard Details, City of Tempe
Comprehensive Transportation Plan
"Corner Site Distance at Intersections" Public Works, Transportation Division.
Engineering Design Criteria Manual, City of Tempe
Federal Americans with Disabilities Act (ADA) Guidelines
General Plan, City of Tempe
Historic Preservation Plan, City of Tempe
Historic Preservation Ordinance (Ch.14A, City Code)
International Building Code
Low Water Use / Drought Tolerant Plant List; ADWR.
Standard Tree Planting Detail, City of Tempe
Transportation Design Guideline, City of Tempe
Zoning Map, City of Tempe
Below is a list of general retail and service uses which may be permitted, unless otherwise determined by the Zoning Administrator. The uses identified are not an exception from the permitted uses found within Part 3, Land Use.
RETAIL SALES
1.
Appliance store
2.
Athletic goods
3.
Automobile parts store
4.
Bakery
5.
Bicycle store
6.
Bookstore
7.
Candy store
8.
Carpet and floor covering store
9.
Clothing store
10.
Computer sales, computer parts
11.
Delicatessen
12.
Department store
13.
Drugstore
14.
Electronic equipment store
15.
Fabric store
16.
Florist and indoor plant sales
17.
Furniture store
18.
Gift shop
19.
Grocery store
20.
Health club
21.
Health food store
22.
Hardware store
23.
Hobby/toy store
24.
Home improvement store
25.
Household goods, appliances, fixtures
26.
Ice cream store
27.
Jewelry sales
28.
Music store
29.
Newsstand
30.
Optical goods / optician
31.
Plant nursery
32.
Pet store
33.
Rental business and/or personal articles
34.
Sporting goods store
35.
Stationery store
36.
Swimming pool supply store
37.
Video rental/sales
SERVICES
38.
Bicycle repair/service
39.
Broadcasting station, radio/TV studio, excluding transmitting towers
40.
Catering establishment
41.
Cleaning service, excluding industrial
42.
Computer repair & related services
43.
Delivery and express offices
44.
Dressmaker
45.
Dry cleaning, excluding industrial
46.
Laundromats, excluding industrial
47.
Motion Picture studio
48.
Pest control
49.
Photographic
50.
Printing
51.
Repair of small appliances, electronics
52.
Professional consulting
53.
Shoe repair
54.
Sun tanning salon
55.
Spa
56.
Tailor
57.
Taxidermist
58.
Travel agent
Below is a list of common permitted home occupations found in the City of Tempe. The home occupation uses identified below does not indicate that such use is allowed by right. All uses must comply with the special standards or limitations per Section 3-412.
1.
Administrative assistance
2.
Arts and crafts
3.
Bakery
4.
Barber Shop
5.
Beauty Salon
6.
Candle-maker
7.
Catering
8.
Computer repair
9.
Dog training (off-site)
10.
General services (off-site)
11.
Graphic design
12.
Handyman
13.
Interior design
14.
Internet sales
15.
Locksmith service
16.
Mail order
17.
Office work
18.
Photographer
19.
Real estate (off-site)
20.
Security alarms
21.
Software consulting
22.
Video production
A.
Purpose. The design guidelines are discretionary criteria which are used in the City's review of project proposals. They are intended to encourage high quality building and site design that complements the architecture, landscapes, history, and culture of Tempe and ensures the functionality of the built environment.
B.
Applicability. The design guidelines are to be applied by the City during project reviews. Applicants are responsible for addressing the guidelines in their project proposals, and the City, through its applicable decision making bodies (Part 6 of this Code) may require modifications to designs to be consistent with the design guidelines. Where an existing building or site that is being added onto or remodeled does not meet a design guideline, the addition or remodel should bring the subject building or site into closer conformance with the guideline, to the extent practicable given the nature and extent of the alteration.
A.
Contextual Design Guideline. Building elevations and materials should have design characteristics that are contextually appropriate. Contextual relationships are determined through design review and consider: massing, rhythm, scale, height, roof form, fenestration (windows and doors), articulation/relief, materials, detailing, lighting, signs, and other features of existing on the site, if any, and adjacent buildings. Where contrasting design elements are provided, the applicant must demonstrate how the alternate design is equal or superior to the existing and/or adjacent building design in terms of compatibility.
1.
New Design Character. A building design that varies from the contextual design guideline in establishing a new character, may be approved only after demonstrating that the proposed design is consistent with the development plan approval criteria in Section 6-307 and it provides exceptional or unique benefits to the neighborhood or community, which may include but are not limited to the following values:
a.
Energy conservation through a certified "green building" or "sustainable development" project;
b.
Historic preservation; and
c.
Affordable housing.
B.
Accessibility. Buildings should be accessible for every person, consistent with the Americans with Disability Act (ADA) and its implementing standards and guidelines. The Americans with Disabilities Act (ADA) is a federal law that was enacted in 1990 for the purpose of ensuring that all Americans have the same basic rights of access to services and facilities. The ADA prohibits discrimination on the basis of disabilities. To effect this prohibition, the statute required certain designated federal agencies to develop implementing regulations, known as the ADA Accessibility Guidelines (ADAAG). The guidelines and standards contained within the ADAAG are continually being updated and refined, and current versions should be reviewed as part of the design process for every project.
C.
Crime Prevention Through Environmental Design (CPTED). Safe environments and pedestrian activity are interrelated and one cannot exist without the other. Therefore building designs should support pedestrian activity and provide natural surveillance of spaces from key locations inside and next to buildings. This should be accomplished through the appropriate design and placement of windows, entrances, pedestrian amenities, lighting, outdoor rooms (e.g., balconies, arcades, and similar features), and activity support. Buildings should incorporate entrances, windows, balconies, and activities allowing visibility of the street, parking areas, and entrances from inside buildings; and visibility of building entrances and other public gathering spaces from the street, as generally shown below. Lighting must conform to the provisions of Part 4, Chapter 8.
The CPTED principles are:
1.
Natural Surveillance
Natural surveillance is the CPTED concept that encourages an open design. It promotes opportunities for people, as they are engaged in their normal behaviors, to observe the space around them.
This principle allows people to feel comfortable as they use a space, maintain distance from intruders that may be in or near the space, and encourage observation of those individuals that may be using the space with criminal intent.
Natural Surveillance encourages the design and placement of physical features so as to maximize visibility. This includes building orientation, placement of windows, building and site entrance and exit locations, refuse containers, landscape materials, parking lots, walkways, walls and fences (including the use of wrought iron and similar materials that promote visibility), signage, and other physical obstructions. It may also include the placement of persons or activities to maximize surveillance possibilities.
Minimally maintained lighting standards that provide for nighttime illumination of parking lots, walkways, entrances, exits and related areas, to promote a safe environment, are also Natural Surveillance components of good CPTED design.
2.
Access Control
Access control is the CPTED principle directed at decreasing criminal accessibility. This principle is especially important where intruders will not be easily observed. Fences, walls, and actual building location on a site are primary considerations to access control. However, provisions of access control must encourage the use of natural surveillance, where practical, to restrict criminal intrusion into an area.
Intruders are more readily recognized through the proper location and use sidewalks, pavement variations, gates, lighting, signage, fencing, landscape and other techniques used to clearly guide the public to and from activity areas and are primary to effective access control.
3.
Activity Support
Activity support involves the placement on activities where the individuals engaged in those activities become part of the natural surveillance and access control systems. Examples include:
Placement of safe activities in areas so as to discourage would be offenders. The goal is to increase the likelihood of good natural surveillance and the perception of safety for normal users, and the perception of risk for the offenders.
Placement of high-risk activities in safer locations to overcome the vulnerability associated with these activities through the use of good natural surveillance and access control techniques.
The location of gathering areas in places that provides good natural surveillance and access control.
4.
Territoriality
Territoriality is the CPTED principle that is used to clearly delineate private space from semi-private and public spaces. Properly used it creates a sense of ownership in private and semi-private areas.
Territoriality creates an environment where strangers and intruders stand out and are more easily identified. This is accomplished through the effective use of signage, grade changes, fencing, landscape edging, lighting, and any number of imaginative techniques that encourage individuals to take pride in their surroundings and report criminal activity.
5.
Maintenance
Proper maintenance of landscape, lighting, addressing, and other features can facilitate the principles of CPTED. It is clear that Access Control, Natural Surveillance, and Territoriality all have a maintenance component. Examples:
Proper maintenance of security lighting to insure that lamps are working properly and the required minimum lighting level are being maintained.
Landscape which is maintained to prescribe standards so as to minimize conflicts between natural surveillance opportunities and landscape at maturity.
The recognition of these principles should help guide owners, architects, planners, and developers of property to design built environments that accomplish the goals of the police department's crime prevention goals.
Figure A-IIC. Crime Prevention Design, Streetscape
D.
Outdoor Living Area. Required outdoor living areas (per Part 3 and 5) should conform to the following standards:
1.
At least fifty percent (50%) of all required areas should be in private outdoor spaces, such as patios, porches, balconies, rooftop gardens, and/or other areas designed for the exclusive use of individual dwelling units;
2.
Designated private outdoor living spaces should have dimensions that are not less than six (6) feet in width and six (6) feet in depth, and eight (8) feet in height;
3.
Areas not designed for the exclusive use of individual dwellings under subsection 1, above, should be designated common areas for all residents of a development. Common areas may include but are not limited to: patios, porches, balconies, rooftop gardens, recreation areas, open space, etc; and
4.
Designated common outdoor living spaces should have dimensions that are not less than fifteen (15) feet in width and fifteen (15) feet in depth, eight (8) feet in height, and five hundred (500) square feet in area per space.
A.
Bicycle Parking Location and Design.
1.
All parking spaces for bicycles should be equipped with a security rack that is designed and installed in conformance with the Pedestrian and Bicycle Facility Design Guidelines, contained in the Comprehensive Transportation Plan. Bicycle racks other than the standard detail may be approved, subject to design review and approval by the Public Works Director;
2.
Areas set aside for bicycle parking should be clearly marked and reserved for bicycle parking only;
3.
Bicycle parking should not impede or create a hazard to pedestrians. Parking areas should located so as to not conflict with vision clearance standards;
4.
Bicycle parking should be conveniently located with respect to both the street right-of-way and at least one building entrance (e.g., no farther away than the closest parking space). It should be incorporated whenever possible into building design and coordinated with the design of street furniture (e.g., benches, street lights, planters and other pedestrian amenities) when street furniture is provided;
5.
Bicycle racks should be installed near main building entrances and located in areas with shade. A pedestrian pathway linking the bicycle parking area to the public sidewalk and the primary building entrance(s) should be provided;
6.
Site design for bicycle parking should conform to the Pedestrian and Bicycle Facility Design Guidelines contained in the Comprehensive Transportation Plan;
7.
Bicycle parking should be visible to cyclists from street sidewalks or building entrances, to aid in security from theft and damage; and
8.
Bicycle parking should be least as well lit as vehicle parking for security.
B.
Options for Storage. Bicycle parking requirements for long-term and employee parking can be met by providing a bicycle storage room, bicycle lockers, racks, or other secure storage space inside or outside of the building.
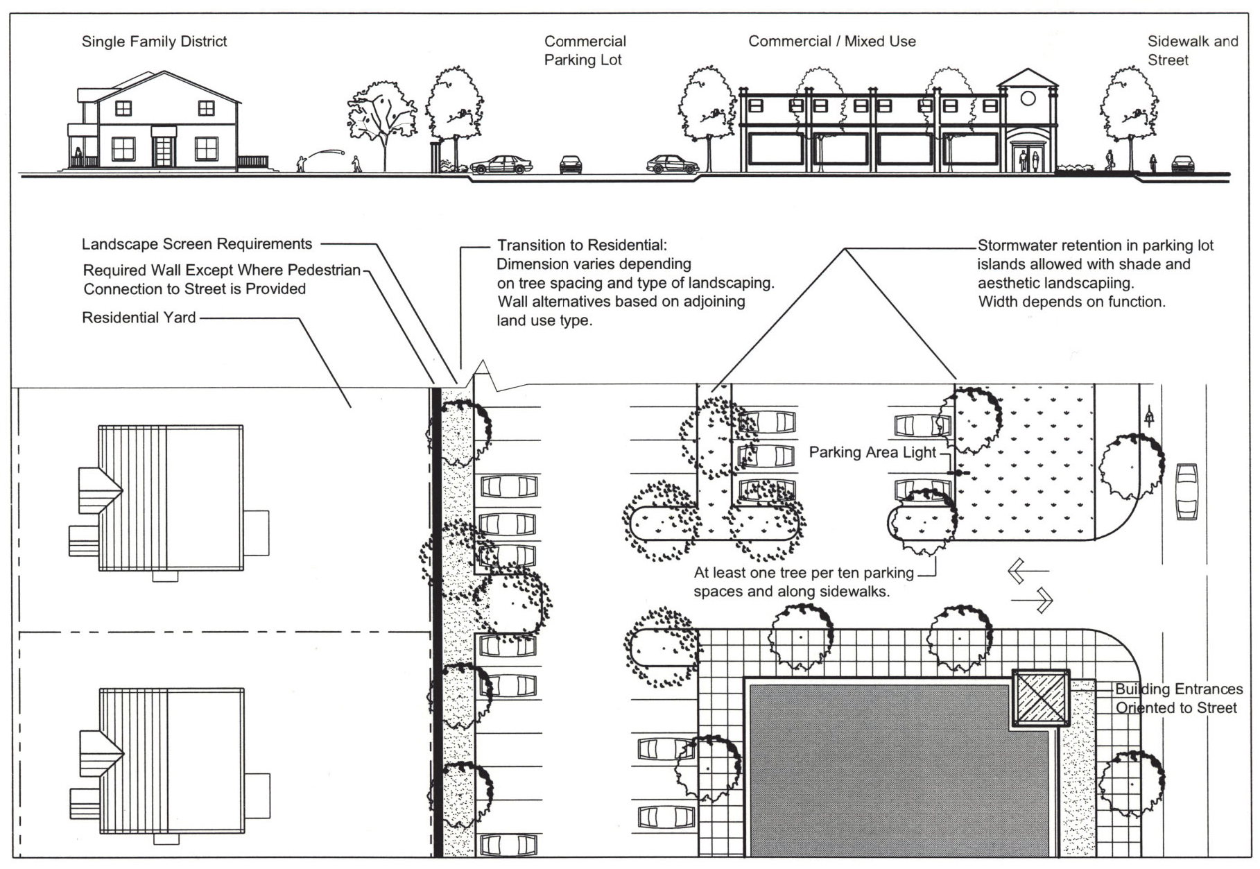
A.
General Landscape Guidelines. Landscape plans should demonstrate that developments satisfy the following guidelines, as applicable, and as generally shown in the figures below:
1.
Provide visual screening, privacy and natural surveillance, where needed.
2.
Retain natural vegetation and incorporate it into the landscape design, as practicable;
3.
Define pedestrian pathways and open space areas with landscape materials where appropriate;
4.
Provide focal points within a development, such as specimen trees, hedges, flowering plants, art and pedestrian amenities;
5.
Use a combination of plants for year-long color and interest; and
6.
Use landscape treatments to enhance the screening of outdoor storage and mechanical equipment areas, and enhance graded areas such as earth berms, swales and retention ponds.
Figure A-IV A.1, General Landscape Guidelines
Figure A-IV A.2, General Landscape Guidelines
(continued)
Figure A-IV A.3, Parking Area Landscape Guidelines
B.
Tree Selection Guidelines. Tree species should be selected based on growth characteristics and site conditions, including available space, overhead clearance, soil conditions, exposure, and desired color and appearance. Consideration should be given to:
1.
Provide a broad canopy where shade or screening of tall objects is desired;
2.
Use low-growing trees for spaces under utility wires;
3.
Select trees from which lower branches can be trimmed in order to maintain a healthy growth habit where vision clearance and natural surveillance is a concern;
4.
Use narrow or columnar trees where awnings or other building features limit growth, or where greater visibility is desired between buildings and the street for natural surveillance; and
5.
Street trees should be planted within existing and proposed planting strips, and in sidewalk tree wells on streets without planting strips. Tree placement should provide canopy cover (shade) and avoid conflicts with existing trees, retaining walls, utilities, lighting, and other obstacles.
C.
Screening Guidelines. The design of screening devices should consider the following guidelines:
1.
Site conditions and adjacent uses should be considered when designing visual screening;
2.
Provide shade over walkways, if appropriate;
3.
Natural surveillance, access control, and privacy needs should be considered; and
4.
General consistency with the guidelines in Figures A-IVA1 and A-IVA2, above.
D.
Wall Design. All required walls shall be located and designed based on the intended screening function, proposed use, and adjoining uses, as follows:
1.
Walls placed between a residential district and any commercial use, industrial uses, or surface parking lot exceeding ten thousand (10,000) square feet shall be constructed of masonry, concrete, ornamental iron, or equal or better quality material, as approved through design review;
2.
All masonry walls shall have an architectural texture, color and material compatible with the primary building on site (or on respective sides). Walls may have ornamental decorative iron fence panels, vertical pickets with spacing that is consistent with the Uniform Building Code, as an integral part of the design of the wall; and
3.
A living wall or see through ornamental iron fence may be approved as a substitute for masonry if the wall is not required for visual screening of mechanical equipment, outdoor storage areas, or parking areas.
E.
2' Plant List. See Appendix B.
F.
3' Plant List. See Appendix C.
A.
Shared Driveways. The number of driveway and private street intersections with public streets should be minimized through the use of shared driveways with adjoining uses where feasible. The City may require the use of shared driveways through the land use and development review process, for traffic safety and access management purposes in accordance with the following standards:
1.
Shared driveways and frontage streets may be required to consolidate access onto a collector or arterial street. When shared driveways or frontage streets are required, the City may require that they be stubbed to adjacent developable parcels for future extension. "Stub" means that a driveway or street temporarily ends at the property line, but may be extended in the future as the adjacent parcel develops. "Developable" means that a parcel is either vacant or it is likely to receive additional development due to infill or redevelopment potential.
2.
Access easements (i.e., for the benefit of affected properties) should be a condition of land use or development approval and should be recorded for all shared driveways prior to occupancy.
3.
Exception. Shared driveways are not required when existing development patterns or physical constraints (e.g., topography, parcel configuration, and similar conditions) prevent extending the street/driveway with reciprocal access in the future.
B.
On-Site Traffic Calming. Traffic calming features such as curb extensions, special paving, humps or other features may be required for the on-site circulation systems and street access points of larger developments. Traffic calming measures should conform to the Pedestrian and Bicycle Facility Design Guidelines, contained in the Comprehensive Transportation Plan.
The following process and design criteria are for gates that are to be used for access control to a commercial, industrial or residential site:
A.
Process. Two copies (24"x36") of an overall site plan of the property and an enlarged detailed site plan (scale: 1" = 20'-0") of the area in which the gate(s) will be located must be submitted for Preliminary Site Plan Review for initial city review. Details of the gates must also be submitted. Final approval must be obtained from Design Review for the site plan with access control gates. Contact the Community Development Department (Planning Staff) at 480-350-8331 for questions regarding this process, submittal requirements and fees.
1.
Any fence, gate or wall over six (6) feet in height or any self-operating or electronically controlled gate will require a permit to be obtained prior to installation. Please contact the Building Safety Division at 480-350-8341 for permit submittal requirements and fees.
2.
All gates require Fire Department approval prior to installation. A plan check/inspection fee will be charged per gate.
B.
Design Criteria. Please indicate, on the site plan, the required number of parking spaces and the number of parking spaces provided for the entire development. The Zoning and Development Code does not allow walls, gates or fences to occupy any required parking spaces. If a wall, fence or gate bisects a parking space, it must be surrounded by a landscaped island that conforms to the sketch below.
1.
Please refer to the Zoning and Development Code for additional requirements affecting parking lot layout, lighting, fence and wall locations, and construction materials for walls.
2.
All walls and gates that are visible from the street must be designed utilizing ornamental iron (no chain link, razor ribbon or barbed wire). Walls or fences shall be designed and finished to relate to other site walls or the main buildings on site.
3.
Pedestrian ingress/egress shall be maintained and meet the requirements of ADA and the Building Code.
4.
For developments located on arterial or collector streets, the Transportation Division of the Public Works Department requires that an eighty (80) feet stacking distance be provided between the public sidewalk and the proposed gate or key box, whichever is closer. A by-pass lane or turn around area must be provided on-site (without requiring a car to back into entering traffic) for vehicles which are not allowed to enter the site. Developments located on streets of other classification will be analyzed on a case-by-case basis.
5.
The main gate shall have an emergency vehicle strobe detector. Knox key switch shall be installed at all gates unless noted by Fire Department. Knox box may be required upon Fire review. Battery backup shall be provided on gate systems unless the gate "fails" in the open position upon loss of power. Fire Prevention requires all gates to have a minimum drive-thru width of twenty (20) feet.
6.
Residential developments such as apartments, condominiums, townhomes, or single family, must provide electronic keypad for Police Department access through gates.
7.
When a commercial, industrial or residential development utilizes city refuse collection services, the Refuse Division of the Public Works Department requires that any gates are to be kept open from 6:00 a.m. to 4:30 p.m. on refuse collection days, unless specific arrangements have been made with the Refuse Division. The property owner or their representative is responsible for opening and closing all gates.
The following items are considered desirable to meet the intent of pedestrian oriented design, but are not required or regulated. Voluntary inclusion of these elements within a development plan will be used in assessment of meeting the intent of this Code, per Section 5-603(B), Conformance, Option B.
A.
Loading, Delivery and Service Entrances.
1.
Internal loading areas are encouraged where possible, within parking structures or podium buildings.
2.
Physical separation of loading/delivery/service uses from other uses is preferred.
3.
Design solution should minimize visual impacts of uses, and provide an attractive aesthetic appearance. Loading areas should not detract from the aesthetic quality of the surroundings, even in parking areas or at the rear of buildings. This includes design of the bumper guards, doors, wall protectors, etc.
B.
Signs. Consideration should be given to sign placement, hours of illumination or light intensity of illuminated signs proposed within new developments when adjacent or across the street from existing residential developments with windows facing the new development. High contrast and tactile signage are encouraged to support persons with different abilities. All other sign standards within Part 4 are applicable.
C.
Cool Materials. To mitigate heat island impacts, new and existing developments are encouraged to use roofing and building materials that provide high reflectivity and/or high emissivity as appropriate to use and occupancy. Use permeable paving surfaces where appropriate, and high reflectivity and/or emissivity paving materials. Reflective surface paving should not be used in large unshaded areas which create significant eye strain or contrast to surroundings, and might impair visibility of pedestrians or drivers.
D.
Accessibility. All standards of the Americans with Disabilities Act, as well as those within the base code apply. Additional consideration should be given to the provision of amenities that serve persons with different abilities, including extra sidewalk widths, physical cues and limited audio distractions for the visually impaired and minimized texture and changes in surface elevation for persons using wheelchairs. All other accessibility standards within Part 4 are applicable.
E.
Retention. Underground retention and on-site rainwater storage for irrigation purposes is permitted, subject to Engineering Division review and approval. Permeable surfaces can be used to decrease area used in calculation for retention. Shared retention is encouraged where opportunities for dedicated public open space can be provided.
AIPD Guidelines
Art in Private Development: The goal of the City of Tempe's Art in Private Development Ordinance (AIPD) is to beautify the community with a wide variety of high-quality art installations. AIPD enhances the identity and character of the Tempe community making it more appealing to residents and helps to further attract visitors.
Tempe Zoning and Development Code, Section 4-407 www.tempe.gov/zoning
The property owner(s) of any project (including mixed-use) that contains more than fifty thousand (50,000) square feet net floor area of commercial or office use within any zoning district (including a mixed-use project) or is a phase of a larger project approved after February 24, 1990, which contains a total of more than fifty thousand (50,000) square feet net floor area of commercial or office use within any zoning district, or an expansion of the net floor area of commercial or office use of any project (including mixed-use) that results in the project containing a total of more than fifty thousand (50,000) square feet net floor area of commercial or office use within any zoning district, shall contribute to Art in Private Development.
The art contribution shall take the form of either on-site installation of exterior artwork or an equivalent cash donation to the Tempe Municipal Arts Fund. All art contributions shall conform to the City of Tempe Art in Private Development Guidelines adopted by the City Council (see Appendix D). The developer's investment in artwork is based on the amount of square footage of the net floor area dedicated to commercial and/or office uses, and is adjusted on July 1 of each year based on the Consumer Price Index for All Urban Consumers (CPI-U).
Eligibility and Restrictions
1. Artwork:
On-site and publicly accessible installation of exterior artwork commissioned by the
applicant
2. Arts Fund Contribution:
An equivalent monetary donation to the Tempe Municipal Arts Fund
ARTWORK ELIGIBILITY. "Artwork" or "Work of Art" is defined as an original artist designed and produced work that is imported into or set at the building site. Developers must hire a Professional Artist for the creation of the Artwork. The Artist is defined as a professional based on their body of work including commissions, exhibits, publications, collections, and educational background. Exclusions include persons primarily working the professional fields of architecture, engineering, design, or landscape who do not have a record of art-based accomplishments as described; persons with a business interest in the development project outside of the creation of the Artwork; and relatives of anyone with a financial interest with respect to the project at-large.
Developers opting to commission a Work of Art to fulfill the Art in Private Development requirement must ensure the Artwork shall be publicly visible and accessible at all times. If Artwork is placed in the interior of a building, the location cannot require payment for entry to view and experience the Artwork, and the Artwork must be in an area that invites the public to loiter as appropriate. Public Art is typically large-scale and may include sculpture, murals, mosaic, ceramic, installation, video, photography, works of light, integrated artist designed land works, and other works determined by the Tempe Arts and Culture Department which will satisfy the requirement.
Each proposed Artwork will require the following for review by the City:
■
Artist Credentials: Including resume, examples of past work, and any other appropriate materials that speak to the artist's professional history.
■
Budget: Itemized budget that meets the required art investment for the development which may include the artist's budget (fees, materials, assistants labor costs, insurance, permits, taxes, legal and business expenses), fabrication and installation of the Artwork, site preparation for the Artwork, structures enabling the artist to display the Artwork, acknowledgement plaque identifying the artist, Artwork, and the development, and any subcontractor fees that relate to the Artwork (engineering, graphic design, welders, etc.)
■
Materials: Materials used for the Artwork must be reviewed by City of Tempe Public Art Staff with regards to viability and budget constraints.
■
Maintenance Plan: All proposed Artworks should include a plan for future maintenance and cleaning
schedule where appropriate.
NOTE: Costs for maintaining and operating Artwork shall not be included in the budget.
■
Artist Agreement with Owner: Any agreement whether conceptual or complete between the owner and the artist for work to be addressed must be provided in the submittal package.
RESTRICTIONS (Proposals that will not meet the public art requirements):
■
Business logos or art that incorporates a logo or portion of a logo
■
Directional or way-finding elements such as supergraphics and signage
■
Mass-produced "art objects" such as fountains, statuary, or playground equipment
■
Standard landscape or hardscape elements which would normally be associated with the project
■
Decorative architectural elements that are designed by the building architect as opposed to an artist commissioned for this purpose
Tempe Municipal Arts Fund Contribution:
Developers have the option of paying into the Tempe Municipal Arts Fund in lieu of
using the AIPD fund for the creation of a work of art on their property. When choosing
this option, the City will, in its discretion, endeavor to use the contribution for
a project or program near the building that is connected to the contribution. When
this option is not possible, the contribution will be used to program arts throughout
the City of Tempe.
To view images of completed Artwork, visit: www.tempe.gov/publicartmap
For assistance and questions, contact Rebecca Blume Rothman, Public Art Manager (480) 350-2827 Rebecca___rothman@tempe.gov
Process
1.
Site Plan Review (SPR) - Applicant electronically submits project plans for City to review. Applicant will receive the AIPD Guidelines, an explanation of the AIPD process and AIPD staff contact information.
2.
Contact Public Art Office - Discuss concepts, budget, location, and visibility of proposed Artwork as well as possible artists. Staff Contact: Rebecca Blume Rothman, Public Art Manager (480) 350-2827 rebecca___rothman@tempe.gov
3.
Select Professional Artist - or - determine amount of in lieu contribution to the Tempe Municipal Arts Fund. If creating Artwork, Artist must show educational background in the arts, and/or arts accomplishments such as gallery or museum exhibits, and completion of public art projects If opting for monetary contribution, alert AIPD staff contact of intent to contribute to the Tempe Municipal Arts Fund.
4.
Development Plan Review (DPR) - Plans are submitted for formal entitlement processing of design of project. Indicate where the Artwork is proposed (generally on the site plan, landscape plan, and elevations — if applicable). The DPR submittal should include a brief description of the art type (i.e., not a completed Artwork design — but identify a sculpture, bridge, entry way, shade structure, mural, etc.). This explanation assists the Development Review Commission in understanding that the art is being considered as part of the overall design of the site and to ensure that there are no conflicts with retention, landscape, irrigation, public rights-of-way, etc.
5.
Submit Artwork Plans to Public Art Office- Include the following: (1) Narrative description of proposed Artwork, (2) Scaled construction drawings or models of the Artwork including site plan and landscape plan showing the proposed Artwork in the development's context, (3) Detailed budget, (4) Artist's resume, (5) Artist contract between the developer and artist, and (6) Maintenance plan and material specifications for the proposed Artwork.
6.
AIPD Committee Review - Artwork plans are reviewed internally by a committee comprised of Public Art and Planning staff as well as a member of the Tempe Arts and Culture Commission (TACC). The committee reviews the proposed Artwork plan, its visibility to the public, and its context within the development. Developers may be asked to bring their art concept for review before the Tempe Arts and Culture Commission for a formal presentation prior to beginning design development. This request is typically based on the size, scale, and location of the proposed project and is determined by the internal committee review.
7.
Contract Submittal - Developers are required to submit the final copy of the artist agreement to the Public Art staff within two (2) months of TACC review. This is to allow for scheduling and planning of the design development, fabrication, and art installation in a timely manner.
8.
Plan Check (PC) - Building construction set reviewed for structural, mechanical, electrical, planning, etc. Artist construction documents must be sent to Planning Review for review and approval.
9.
Building Permit (BP) - Released after all issues in development construction document set are resolved, which may include Artwork if Building Permit (BP) is required. In the rare event of a delay, a waiver must be approved in advance to allow a Building Permit (BP) to be issued prior to artist's construction documents. Artwork location should be identified on site plan and coordinated on plan set (landscape, irrigation, electrical, etc.).
10.
Inspection of Installed Artwork - Contractor / Artist / Representative of an AIPD installation must schedule and pass a Planning Final (699) field inspection prior to Building Final approval (CofO).
11.
Certificate of Occupancy (CofO) - Artwork must be installed and completed before a Certificate of Occupancy can be
issued. If there is a need to delay due to artist / installation schedule, a Temporary
Certificate of Occupancy (TCO) may be issued contingent upon an agreed deadline to
complete and install the Artwork.
NOTE: CofO / TCO issuance are at the discretion of the field inspection team, based on
approved plans and public safety requirements.
12.
Final notification to Public Art Office with high resolution images of Artwork.
AIPD installations are published in the City of Tempe www.tempe.gov/publicartmap
(July 1, 2018; Ord. of 02-01-2020(1); March 3, 2021; Amd. of February 1, 2025)
A.
Photometric Plan. A photometric plan includes the following:
1.
Photometric calculations detailing all exterior security lighting, shall be submitted and provided on a fifty percent (50%) screened landscape plan that has been approved by the Design Review Board, drawn on twenty four (24) inch by thirty six (36) inch format prepared to scale. Point to point photometric calculations shall be calculated at intervals of not more than ten (10) feet at ground level and may also be required at six (6) feet above finish grade;
2.
Include light fixture schedule on photometric plan;
3.
A copy of all cut sheets for light fixtures shall be submitted and marked as to which information and data applies to the specific luminaire, including the lamp manufacturer; and
4.
Photometric calculations shall be based on the "mean" light output per the manufacturer's of the specified lamp, including ballast depreciation and contamination factors. Light Loss Factor (LLF) shall be calculated at .68 for Metal Halide (MH) and .72 for High Pressure Sodium (HPS). All luminary photometric data formatted in accordance with the Illumination Engineering Society (I.E.S.) file compiled by an approved testing laboratory.
Tempe's "Standard Shared Parking Model" can be used as a basis for predicting the Parking Demand for a particular mix of uses on a site. The model assumes that every separate use will actually need the full amount of parking that is called for by the ratios in the Ordinance at some point (called the "peak" period for the use) during the day. For example, in the real world, some uses (like nightclubs) peak in the evening; others (like offices) peak in the morning or afternoon. Where different uses need parking at different times of the day, there is an opportunity for them to share parking. This means that the total number of stalls needed to serve a "mixed use" site (the Parking Demand) may be significantly less than the number of stalls that would have to be built if each of the uses had to provide parking on its own (the Parking Required by this Code).
The Standard Shared Parking Model is a tool for estimating the Parking Demand of a specific mix of uses. It is called "standard" because each of the demand curves represents the parking needed for an average, typical use, based on studies and observations collected by staff over a number of years. The "curves" are represented below as a table showing the percent of the Code requirement for such uses, by hour of day.
These curves can be adapted to fit the specific needs of a major tenant on the site. The advantage of doing this is that the mode will be more accurate in predicting that tenant's share of the parking throughout the day. The disadvantage is that the model will be unique, and may not work as well if that tenant is replaced by an average, typical user in the future. In addition to changing the curves, one might also consider the impact of transit availability (reliable mass transit serving the site), trip reduction programs (van and carpooling, etc.) and captive market effects (where users serve patrons who are already on site), as well as any users who might need more parking than the Code ratios require. Any modifications to the standard model should be based on a "professional parking analysis and management study", as described in a companion information sheet available from the Development Services Department.
Enclosed: Instructions on how to apply model.
PARKING ANALYSIS AND MANAGEMENT STUDY
Section 4-604 of Tempe's Zoning & Development Code refers to submittal of a professional Parking Analysis and Management Study where applicant is basing his parking on the predicted demand, rather than on the amount required by Code. To assist in the process, staff has prepared a more detailed description of the elements in such a Study, in a format that could be adapted as needed for each site:
To use the model, take the following steps:
1.
Verify that all uses on site have equal access to all parking spaces on site, that there are cross access easements across all property lines, and that there are no legal impediments to sharing the parking.
2.
List all uses on the site.
3.
Parking Required: Calculate the parking required for each use according to the ratios in the Code.
4.
Adjust for transit, trip reduction, captive market or surplus need effects; if you change the model, state your assumptions clearly.
5.
Group the uses according to the categories in Table I.
6.
Add up the total number of spaces required for each group.
7.
Multiply that number times the percent shown in the Tables ("80" means 80% or .8 of the Code requirement) for each hour for each group.
8.
Add up the total number of spaces needed by hour of day.
9.
Parking Demand: Find the maximum number of spaces needed by hour of day: this will represent the minimum number of spaces that the particular mix will actually need.
10.
Parking Provided: Add between 5% (for larger sites with stable Demand throughout the year) and 10% (for small sites with a Demand that fluctuates throughout the year) to the Parking Demand to get a realistic estimate of the amount of parking you should provide for this mix of uses.
ZONING
City Code, Chapter 35 - Zoning and Development Fees
FEE SCHEDULE
Footnote 8
Pursuant to Resolution No. 2005.26, the City council approved annual fee adjustments
based on the annual United States Department of Labor, Bureau of Labor Statistics
Consumer Price Index—All Urban Consumers, West Region, effective at the beginning
of each fiscal year beginning July 1, 2006
Footnote 9
Total fee includes the addition of a 9% Technology & Training Fee pursuant to Resolution
No. R2020.XX, which is not subject to the annual CPI fee adjustment.
(July 1, 2018; July 1, 2021; July 1, 2022; July 1, 2023; July 1, 2024; Ord. No. O2024.58, effective January 18, 2025; July 1, 2025)
ORDINANCE NO. 2003.36
AN ORDINANCE OF THE CITY COUNCIL OF THE CITY OF TEMPE, ARIZONA, REPEALING ZONING ORDINANCE NO. 808 AND ADOPTING THE CITY OF TEMPE ZONING AND DEVELOPMENT CODE ESTABLISHING LAND USE CLASSIFICATIONS; DIVIDING THE CITY INTO DISTRICTS; IMPOSING REGULATIONS, PROHIBITIONS AND RESTRICTIONS FOR THE PROMOTION OF HEALTH, SAFETY, MORALS, CONVENIENCE, AESTHETICS, AND WELFARE.
WHEREAS, it has been found necessary for the public health, safety or general welfare of the City of Tempe that an amended Zoning Ordinance shall be enacted, and
WHEREAS, by authority conferred by Title 9, Chapter 4, Article 6.1, Arizona Revised Statutes, the City of Tempe is authorized and empowered to enact such an ordinance;
NOW THEREFORE, BE IT ORDAINED BY THE CITY COUNCIL OF THE CITY OF TEMPE, ARIZONA, as follows:
Section 1. That Zoning Ordinance No. 808 adopted by the City Council on September 2, 1976 is hereby repealed in its entirety.
Section 2. That the City Council hereby adopts the Zoning and Development Code, copies of which are on file in the office of the City Clerk.
Section 3. That all rights or remedies of the City of Tempe are expressly saved as to any and all violations of such repealed ordinance and all amendments thereto. Courts of competent jurisdiction shall have all the powers that existed prior to the effective date of the Zoning and Development Code as to all violations that have accrued at the time of the effective date of the Code. All existing violations of the Zoning Ordinance of the City of Tempe, Arizona, Ordinance No. 808, and all amendments thereto, which may otherwise become nonconforming uses under this Ordinance, shall not become legal nonconforming uses.
Section 4. If any section, subsection, sentence, clause, phrase or portion of the Zoning and Development Code is for any reason held to be invalid or unconstitutional by the decision of any court of competent jurisdiction, such decision shall not affect the validity of the remaining portions thereof.
PASSED AND ADOPTED BY THE CITY COUNCIL OF THE CITY OF TEMPE, ARIZONA, this _______ day of ______________, 2005.
ATTEST:
APPROVED AS TO FORM:
Apache Boulevard Redevelopment Plan
Arizona Department of Water Resources (ADWR), Management Plan (Phoenix)
Arizona Nurseryman Association Standards
Arizona State Revised Statutes (ARS)
City Code, City of Tempe (TCC)
Public Works Department Standard Details, City of Tempe
Comprehensive Transportation Plan
"Corner Site Distance at Intersections" Public Works, Transportation Division.
Engineering Design Criteria Manual, City of Tempe
Federal Americans with Disabilities Act (ADA) Guidelines
General Plan, City of Tempe
Historic Preservation Plan, City of Tempe
Historic Preservation Ordinance (Ch.14A, City Code)
International Building Code
Low Water Use / Drought Tolerant Plant List; ADWR.
Standard Tree Planting Detail, City of Tempe
Transportation Design Guideline, City of Tempe
Zoning Map, City of Tempe
Below is a list of general retail and service uses which may be permitted, unless otherwise determined by the Zoning Administrator. The uses identified are not an exception from the permitted uses found within Part 3, Land Use.
RETAIL SALES
1.
Appliance store
2.
Athletic goods
3.
Automobile parts store
4.
Bakery
5.
Bicycle store
6.
Bookstore
7.
Candy store
8.
Carpet and floor covering store
9.
Clothing store
10.
Computer sales, computer parts
11.
Delicatessen
12.
Department store
13.
Drugstore
14.
Electronic equipment store
15.
Fabric store
16.
Florist and indoor plant sales
17.
Furniture store
18.
Gift shop
19.
Grocery store
20.
Health club
21.
Health food store
22.
Hardware store
23.
Hobby/toy store
24.
Home improvement store
25.
Household goods, appliances, fixtures
26.
Ice cream store
27.
Jewelry sales
28.
Music store
29.
Newsstand
30.
Optical goods / optician
31.
Plant nursery
32.
Pet store
33.
Rental business and/or personal articles
34.
Sporting goods store
35.
Stationery store
36.
Swimming pool supply store
37.
Video rental/sales
SERVICES
38.
Bicycle repair/service
39.
Broadcasting station, radio/TV studio, excluding transmitting towers
40.
Catering establishment
41.
Cleaning service, excluding industrial
42.
Computer repair & related services
43.
Delivery and express offices
44.
Dressmaker
45.
Dry cleaning, excluding industrial
46.
Laundromats, excluding industrial
47.
Motion Picture studio
48.
Pest control
49.
Photographic
50.
Printing
51.
Repair of small appliances, electronics
52.
Professional consulting
53.
Shoe repair
54.
Sun tanning salon
55.
Spa
56.
Tailor
57.
Taxidermist
58.
Travel agent
Below is a list of common permitted home occupations found in the City of Tempe. The home occupation uses identified below does not indicate that such use is allowed by right. All uses must comply with the special standards or limitations per Section 3-412.
1.
Administrative assistance
2.
Arts and crafts
3.
Bakery
4.
Barber Shop
5.
Beauty Salon
6.
Candle-maker
7.
Catering
8.
Computer repair
9.
Dog training (off-site)
10.
General services (off-site)
11.
Graphic design
12.
Handyman
13.
Interior design
14.
Internet sales
15.
Locksmith service
16.
Mail order
17.
Office work
18.
Photographer
19.
Real estate (off-site)
20.
Security alarms
21.
Software consulting
22.
Video production
A.
Purpose. The design guidelines are discretionary criteria which are used in the City's review of project proposals. They are intended to encourage high quality building and site design that complements the architecture, landscapes, history, and culture of Tempe and ensures the functionality of the built environment.
B.
Applicability. The design guidelines are to be applied by the City during project reviews. Applicants are responsible for addressing the guidelines in their project proposals, and the City, through its applicable decision making bodies (Part 6 of this Code) may require modifications to designs to be consistent with the design guidelines. Where an existing building or site that is being added onto or remodeled does not meet a design guideline, the addition or remodel should bring the subject building or site into closer conformance with the guideline, to the extent practicable given the nature and extent of the alteration.
A.
Contextual Design Guideline. Building elevations and materials should have design characteristics that are contextually appropriate. Contextual relationships are determined through design review and consider: massing, rhythm, scale, height, roof form, fenestration (windows and doors), articulation/relief, materials, detailing, lighting, signs, and other features of existing on the site, if any, and adjacent buildings. Where contrasting design elements are provided, the applicant must demonstrate how the alternate design is equal or superior to the existing and/or adjacent building design in terms of compatibility.
1.
New Design Character. A building design that varies from the contextual design guideline in establishing a new character, may be approved only after demonstrating that the proposed design is consistent with the development plan approval criteria in Section 6-307 and it provides exceptional or unique benefits to the neighborhood or community, which may include but are not limited to the following values:
a.
Energy conservation through a certified "green building" or "sustainable development" project;
b.
Historic preservation; and
c.
Affordable housing.
B.
Accessibility. Buildings should be accessible for every person, consistent with the Americans with Disability Act (ADA) and its implementing standards and guidelines. The Americans with Disabilities Act (ADA) is a federal law that was enacted in 1990 for the purpose of ensuring that all Americans have the same basic rights of access to services and facilities. The ADA prohibits discrimination on the basis of disabilities. To effect this prohibition, the statute required certain designated federal agencies to develop implementing regulations, known as the ADA Accessibility Guidelines (ADAAG). The guidelines and standards contained within the ADAAG are continually being updated and refined, and current versions should be reviewed as part of the design process for every project.
C.
Crime Prevention Through Environmental Design (CPTED). Safe environments and pedestrian activity are interrelated and one cannot exist without the other. Therefore building designs should support pedestrian activity and provide natural surveillance of spaces from key locations inside and next to buildings. This should be accomplished through the appropriate design and placement of windows, entrances, pedestrian amenities, lighting, outdoor rooms (e.g., balconies, arcades, and similar features), and activity support. Buildings should incorporate entrances, windows, balconies, and activities allowing visibility of the street, parking areas, and entrances from inside buildings; and visibility of building entrances and other public gathering spaces from the street, as generally shown below. Lighting must conform to the provisions of Part 4, Chapter 8.
The CPTED principles are:
1.
Natural Surveillance
Natural surveillance is the CPTED concept that encourages an open design. It promotes opportunities for people, as they are engaged in their normal behaviors, to observe the space around them.
This principle allows people to feel comfortable as they use a space, maintain distance from intruders that may be in or near the space, and encourage observation of those individuals that may be using the space with criminal intent.
Natural Surveillance encourages the design and placement of physical features so as to maximize visibility. This includes building orientation, placement of windows, building and site entrance and exit locations, refuse containers, landscape materials, parking lots, walkways, walls and fences (including the use of wrought iron and similar materials that promote visibility), signage, and other physical obstructions. It may also include the placement of persons or activities to maximize surveillance possibilities.
Minimally maintained lighting standards that provide for nighttime illumination of parking lots, walkways, entrances, exits and related areas, to promote a safe environment, are also Natural Surveillance components of good CPTED design.
2.
Access Control
Access control is the CPTED principle directed at decreasing criminal accessibility. This principle is especially important where intruders will not be easily observed. Fences, walls, and actual building location on a site are primary considerations to access control. However, provisions of access control must encourage the use of natural surveillance, where practical, to restrict criminal intrusion into an area.
Intruders are more readily recognized through the proper location and use sidewalks, pavement variations, gates, lighting, signage, fencing, landscape and other techniques used to clearly guide the public to and from activity areas and are primary to effective access control.
3.
Activity Support
Activity support involves the placement on activities where the individuals engaged in those activities become part of the natural surveillance and access control systems. Examples include:
Placement of safe activities in areas so as to discourage would be offenders. The goal is to increase the likelihood of good natural surveillance and the perception of safety for normal users, and the perception of risk for the offenders.
Placement of high-risk activities in safer locations to overcome the vulnerability associated with these activities through the use of good natural surveillance and access control techniques.
The location of gathering areas in places that provides good natural surveillance and access control.
4.
Territoriality
Territoriality is the CPTED principle that is used to clearly delineate private space from semi-private and public spaces. Properly used it creates a sense of ownership in private and semi-private areas.
Territoriality creates an environment where strangers and intruders stand out and are more easily identified. This is accomplished through the effective use of signage, grade changes, fencing, landscape edging, lighting, and any number of imaginative techniques that encourage individuals to take pride in their surroundings and report criminal activity.
5.
Maintenance
Proper maintenance of landscape, lighting, addressing, and other features can facilitate the principles of CPTED. It is clear that Access Control, Natural Surveillance, and Territoriality all have a maintenance component. Examples:
Proper maintenance of security lighting to insure that lamps are working properly and the required minimum lighting level are being maintained.
Landscape which is maintained to prescribe standards so as to minimize conflicts between natural surveillance opportunities and landscape at maturity.
The recognition of these principles should help guide owners, architects, planners, and developers of property to design built environments that accomplish the goals of the police department's crime prevention goals.
Figure A-IIC. Crime Prevention Design, Streetscape
D.
Outdoor Living Area. Required outdoor living areas (per Part 3 and 5) should conform to the following standards:
1.
At least fifty percent (50%) of all required areas should be in private outdoor spaces, such as patios, porches, balconies, rooftop gardens, and/or other areas designed for the exclusive use of individual dwelling units;
2.
Designated private outdoor living spaces should have dimensions that are not less than six (6) feet in width and six (6) feet in depth, and eight (8) feet in height;
3.
Areas not designed for the exclusive use of individual dwellings under subsection 1, above, should be designated common areas for all residents of a development. Common areas may include but are not limited to: patios, porches, balconies, rooftop gardens, recreation areas, open space, etc; and
4.
Designated common outdoor living spaces should have dimensions that are not less than fifteen (15) feet in width and fifteen (15) feet in depth, eight (8) feet in height, and five hundred (500) square feet in area per space.
A.
Bicycle Parking Location and Design.
1.
All parking spaces for bicycles should be equipped with a security rack that is designed and installed in conformance with the Pedestrian and Bicycle Facility Design Guidelines, contained in the Comprehensive Transportation Plan. Bicycle racks other than the standard detail may be approved, subject to design review and approval by the Public Works Director;
2.
Areas set aside for bicycle parking should be clearly marked and reserved for bicycle parking only;
3.
Bicycle parking should not impede or create a hazard to pedestrians. Parking areas should located so as to not conflict with vision clearance standards;
4.
Bicycle parking should be conveniently located with respect to both the street right-of-way and at least one building entrance (e.g., no farther away than the closest parking space). It should be incorporated whenever possible into building design and coordinated with the design of street furniture (e.g., benches, street lights, planters and other pedestrian amenities) when street furniture is provided;
5.
Bicycle racks should be installed near main building entrances and located in areas with shade. A pedestrian pathway linking the bicycle parking area to the public sidewalk and the primary building entrance(s) should be provided;
6.
Site design for bicycle parking should conform to the Pedestrian and Bicycle Facility Design Guidelines contained in the Comprehensive Transportation Plan;
7.
Bicycle parking should be visible to cyclists from street sidewalks or building entrances, to aid in security from theft and damage; and
8.
Bicycle parking should be least as well lit as vehicle parking for security.
B.
Options for Storage. Bicycle parking requirements for long-term and employee parking can be met by providing a bicycle storage room, bicycle lockers, racks, or other secure storage space inside or outside of the building.
A.
General Landscape Guidelines. Landscape plans should demonstrate that developments satisfy the following guidelines, as applicable, and as generally shown in the figures below:
1.
Provide visual screening, privacy and natural surveillance, where needed.
2.
Retain natural vegetation and incorporate it into the landscape design, as practicable;
3.
Define pedestrian pathways and open space areas with landscape materials where appropriate;
4.
Provide focal points within a development, such as specimen trees, hedges, flowering plants, art and pedestrian amenities;
5.
Use a combination of plants for year-long color and interest; and
6.
Use landscape treatments to enhance the screening of outdoor storage and mechanical equipment areas, and enhance graded areas such as earth berms, swales and retention ponds.
Figure A-IV A.1, General Landscape Guidelines
Figure A-IV A.2, General Landscape Guidelines
(continued)
Figure A-IV A.3, Parking Area Landscape Guidelines
B.
Tree Selection Guidelines. Tree species should be selected based on growth characteristics and site conditions, including available space, overhead clearance, soil conditions, exposure, and desired color and appearance. Consideration should be given to:
1.
Provide a broad canopy where shade or screening of tall objects is desired;
2.
Use low-growing trees for spaces under utility wires;
3.
Select trees from which lower branches can be trimmed in order to maintain a healthy growth habit where vision clearance and natural surveillance is a concern;
4.
Use narrow or columnar trees where awnings or other building features limit growth, or where greater visibility is desired between buildings and the street for natural surveillance; and
5.
Street trees should be planted within existing and proposed planting strips, and in sidewalk tree wells on streets without planting strips. Tree placement should provide canopy cover (shade) and avoid conflicts with existing trees, retaining walls, utilities, lighting, and other obstacles.
C.
Screening Guidelines. The design of screening devices should consider the following guidelines:
1.
Site conditions and adjacent uses should be considered when designing visual screening;
2.
Provide shade over walkways, if appropriate;
3.
Natural surveillance, access control, and privacy needs should be considered; and
4.
General consistency with the guidelines in Figures A-IVA1 and A-IVA2, above.
D.
Wall Design. All required walls shall be located and designed based on the intended screening function, proposed use, and adjoining uses, as follows:
1.
Walls placed between a residential district and any commercial use, industrial uses, or surface parking lot exceeding ten thousand (10,000) square feet shall be constructed of masonry, concrete, ornamental iron, or equal or better quality material, as approved through design review;
2.
All masonry walls shall have an architectural texture, color and material compatible with the primary building on site (or on respective sides). Walls may have ornamental decorative iron fence panels, vertical pickets with spacing that is consistent with the Uniform Building Code, as an integral part of the design of the wall; and
3.
A living wall or see through ornamental iron fence may be approved as a substitute for masonry if the wall is not required for visual screening of mechanical equipment, outdoor storage areas, or parking areas.
E.
2' Plant List. See Appendix B.
F.
3' Plant List. See Appendix C.
A.
Shared Driveways. The number of driveway and private street intersections with public streets should be minimized through the use of shared driveways with adjoining uses where feasible. The City may require the use of shared driveways through the land use and development review process, for traffic safety and access management purposes in accordance with the following standards:
1.
Shared driveways and frontage streets may be required to consolidate access onto a collector or arterial street. When shared driveways or frontage streets are required, the City may require that they be stubbed to adjacent developable parcels for future extension. "Stub" means that a driveway or street temporarily ends at the property line, but may be extended in the future as the adjacent parcel develops. "Developable" means that a parcel is either vacant or it is likely to receive additional development due to infill or redevelopment potential.
2.
Access easements (i.e., for the benefit of affected properties) should be a condition of land use or development approval and should be recorded for all shared driveways prior to occupancy.
3.
Exception. Shared driveways are not required when existing development patterns or physical constraints (e.g., topography, parcel configuration, and similar conditions) prevent extending the street/driveway with reciprocal access in the future.
B.
On-Site Traffic Calming. Traffic calming features such as curb extensions, special paving, humps or other features may be required for the on-site circulation systems and street access points of larger developments. Traffic calming measures should conform to the Pedestrian and Bicycle Facility Design Guidelines, contained in the Comprehensive Transportation Plan.
The following process and design criteria are for gates that are to be used for access control to a commercial, industrial or residential site:
A.
Process. Two copies (24"x36") of an overall site plan of the property and an enlarged detailed site plan (scale: 1" = 20'-0") of the area in which the gate(s) will be located must be submitted for Preliminary Site Plan Review for initial city review. Details of the gates must also be submitted. Final approval must be obtained from Design Review for the site plan with access control gates. Contact the Community Development Department (Planning Staff) at 480-350-8331 for questions regarding this process, submittal requirements and fees.
1.
Any fence, gate or wall over six (6) feet in height or any self-operating or electronically controlled gate will require a permit to be obtained prior to installation. Please contact the Building Safety Division at 480-350-8341 for permit submittal requirements and fees.
2.
All gates require Fire Department approval prior to installation. A plan check/inspection fee will be charged per gate.
B.
Design Criteria. Please indicate, on the site plan, the required number of parking spaces and the number of parking spaces provided for the entire development. The Zoning and Development Code does not allow walls, gates or fences to occupy any required parking spaces. If a wall, fence or gate bisects a parking space, it must be surrounded by a landscaped island that conforms to the sketch below.
1.
Please refer to the Zoning and Development Code for additional requirements affecting parking lot layout, lighting, fence and wall locations, and construction materials for walls.
2.
All walls and gates that are visible from the street must be designed utilizing ornamental iron (no chain link, razor ribbon or barbed wire). Walls or fences shall be designed and finished to relate to other site walls or the main buildings on site.
3.
Pedestrian ingress/egress shall be maintained and meet the requirements of ADA and the Building Code.
4.
For developments located on arterial or collector streets, the Transportation Division of the Public Works Department requires that an eighty (80) feet stacking distance be provided between the public sidewalk and the proposed gate or key box, whichever is closer. A by-pass lane or turn around area must be provided on-site (without requiring a car to back into entering traffic) for vehicles which are not allowed to enter the site. Developments located on streets of other classification will be analyzed on a case-by-case basis.
5.
The main gate shall have an emergency vehicle strobe detector. Knox key switch shall be installed at all gates unless noted by Fire Department. Knox box may be required upon Fire review. Battery backup shall be provided on gate systems unless the gate "fails" in the open position upon loss of power. Fire Prevention requires all gates to have a minimum drive-thru width of twenty (20) feet.
6.
Residential developments such as apartments, condominiums, townhomes, or single family, must provide electronic keypad for Police Department access through gates.
7.
When a commercial, industrial or residential development utilizes city refuse collection services, the Refuse Division of the Public Works Department requires that any gates are to be kept open from 6:00 a.m. to 4:30 p.m. on refuse collection days, unless specific arrangements have been made with the Refuse Division. The property owner or their representative is responsible for opening and closing all gates.
The following items are considered desirable to meet the intent of pedestrian oriented design, but are not required or regulated. Voluntary inclusion of these elements within a development plan will be used in assessment of meeting the intent of this Code, per Section 5-603(B), Conformance, Option B.
A.
Loading, Delivery and Service Entrances.
1.
Internal loading areas are encouraged where possible, within parking structures or podium buildings.
2.
Physical separation of loading/delivery/service uses from other uses is preferred.
3.
Design solution should minimize visual impacts of uses, and provide an attractive aesthetic appearance. Loading areas should not detract from the aesthetic quality of the surroundings, even in parking areas or at the rear of buildings. This includes design of the bumper guards, doors, wall protectors, etc.
B.
Signs. Consideration should be given to sign placement, hours of illumination or light intensity of illuminated signs proposed within new developments when adjacent or across the street from existing residential developments with windows facing the new development. High contrast and tactile signage are encouraged to support persons with different abilities. All other sign standards within Part 4 are applicable.
C.
Cool Materials. To mitigate heat island impacts, new and existing developments are encouraged to use roofing and building materials that provide high reflectivity and/or high emissivity as appropriate to use and occupancy. Use permeable paving surfaces where appropriate, and high reflectivity and/or emissivity paving materials. Reflective surface paving should not be used in large unshaded areas which create significant eye strain or contrast to surroundings, and might impair visibility of pedestrians or drivers.
D.
Accessibility. All standards of the Americans with Disabilities Act, as well as those within the base code apply. Additional consideration should be given to the provision of amenities that serve persons with different abilities, including extra sidewalk widths, physical cues and limited audio distractions for the visually impaired and minimized texture and changes in surface elevation for persons using wheelchairs. All other accessibility standards within Part 4 are applicable.
E.
Retention. Underground retention and on-site rainwater storage for irrigation purposes is permitted, subject to Engineering Division review and approval. Permeable surfaces can be used to decrease area used in calculation for retention. Shared retention is encouraged where opportunities for dedicated public open space can be provided.