- LANDSCAPING AND BUFFERYARD REGULATIONS
The purpose of article 6 is to provide the minimum landscaping, screening and buffering standards to protect and improve community appearance, mitigate the environmental and aesthetic impacts of new development, prevent the creation of nuisances and health hazards, implement the aesthetic recommendations of the comprehensive plan, and improve quality of life in the city.
(Ord. No. 801G, § 3, 3-6-06)
(A)
Article 6 contains the standards, which govern the amount, size, type, installation and maintenance of required landscaping. Each section of article 6 is oriented to a specific category of required landscaping. The landscaping requirements described in Article 6 of the Ordinance are cumulative in nature and are required for all new developments and building expansions, except single-family residential and agricultural uses. A "landscaping point" concept is used in Article 6 to provide a maximum amount of flexibility in terms of the selection of plant materials.
(B)
Applicability. Any use for which submittal of a site plan is required under § 150.906, or for which a variance is required, shall provide landscaping in accordance with the regulations of article 6, except for additions to existing buildings where insufficient dimensions exist on site. When expanding a development, if additions or enlargements are 50 percent or more of the square footage of existing uses, structures, or vehicular use areas, the landscaping requirements shall apply to the entirety of the site. If the additions or enlargements are less than 50 percent of the square footage of the existing uses, structures, or vehicular use areas, then only the building foundation and paved area requirements shall apply to the expanded structure or vehicular use area.
(C)
Depiction on required site plan. Where a site plan is required for any project under § 150.906, all proposed landscape plantings to be located on the subject property shall be depicted as to their location, type, and size at time of planting and maturity.
(D)
Calculating landscaping and bufferyard requirements. In calculating the number of required landscaping points under the provisions of this section, all areas and distances on which required calculations are based shall be rounded up to the nearest whole number of square feet or linear feet. Any partial plant derived from the required calculations of this section (for example 23.3 canopy trees) shall be rounded up to the nearest whole plant (24 canopy trees).
(Ord. No. 801G, § 3, 3-6-06)
(A)
All landscaping requirements are stated in terms of the number of landscaping points required. The required number of landscaping points is dependent upon the type of land use, the zoning district, and the size of the development. A different number of points is awarded for each plant, depending upon its typical growth rate, its mature height, and whether it is a deciduous or evergreen species. Shrubs may be replaced with ornamental grasses and perennials; however, such replacement shall not exceed 50 percent of the required number of shrubs. A minimum installation size is required for each of these plant categories. These requirements are as follows:
Table 150.603. Landscaping Points and Minimum Installation Sizes
(B)
Measurement for landscaping requirements. A minimum amount of landscaping points, based upon the zoning district, is required for:
(1)
The linear feet building foundations;
(2)
The gross floor area of buildings on developed lots;
(3)
The linear feet of street frontage; and
(4)
The total combined area of paved areas.
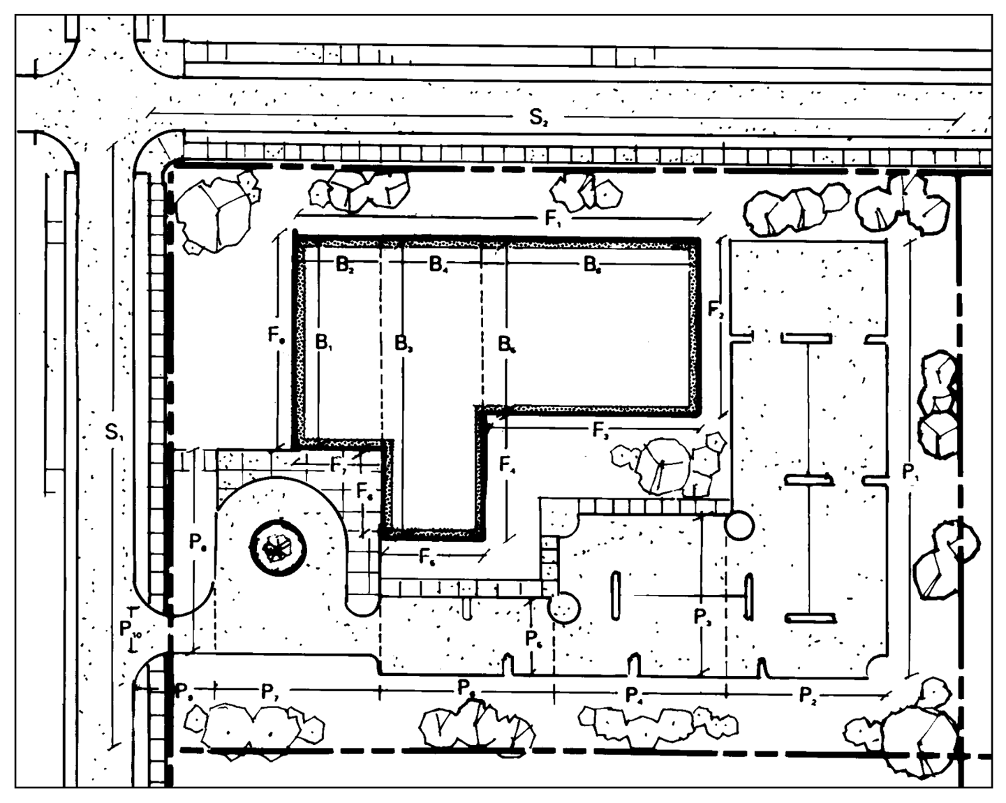
The following diagram illustrates the measurement techniques used to determine these
requirements:

Landscape Measurements
Landscape measurements: Landscaping calculation equations for this example:
Paved area = (P 1 × P 2 ) + (P 3 × P 4 ) + (P 5 × P 6 ) + (P 7 × P 8 ) + (P 9 × P 10 )
Street frontage = S 1 + S 2
Building perimeter = F 1 + F 2 + F 3 + F 4 + F 5 + F 6 + F 7 + F 8
Building floor area = (B 1 × B 2 ) + (B 3 × B 4 ) + (B 5 × B 6 )
(Ord. No. 801G, § 3, 3-6-06; Ord. No. 24H, §§ 7, 8, 9-8-09)
(a)
Landscaping is not required for single-family (§ 150.204(A)) or agricultural (§ 150.204(B)) land uses. When expanding a development, if additions or enlargements are 50 percent or more of the square footage of existing uses, structures, or vehicular use areas, the landscaping requirements shall apply to the entirety of the site. If the additions or enlargements are less than 50 percent of the square footage of the existing uses, structures, or vehicular use areas, then only the building foundation and paved area requirements shall apply to the expanded structure or vehicular use area.
(1)
Building foundations. This section requires that certain buildings, or building additions, constructed after the effective date of this chapter be accented by a minimum amount of landscaping placed near the building foundation.
A.
Landscaping required by this section shall be placed so that at maturity, the plant's drip line is located within ten feet of the building foundation. Such landscaping shall not be located in those areas required for landscaping as street frontages, paved areas, protected green space areas, reforestation areas, or bufferyards.

Sample Configuration Best Suited for Building Foundations
B.
For each 100 feet of building foundation perimeter, the number of landscape points identified in table 150.604 shall be provided on a prorated basis, and installed and permanently maintained per the requirements of § 150.609.
C.
Climax trees and tall trees shall not be used to meet this requirement. The intent of this section is to require a visual break in the mass of buildings and to require a visual screen of a minimum of six feet in height for all exterior perimeter appurtenances (such as HVAC/utility boxes, standpipes, stormwater discharge pipes and other pipes).
D.
Where the officially approved site plan depicts a future building extension, the foundation landscaping requirement shall be calculated by measuring the length of the total perimeter. However, foundation plantings need only be installed based on the landscape points calculated from the portions of the building perimeter that will not be affected by building extension. If this results in point requirements, which are not met through the initial planting, then a performance bond for remaining plantings shall be deposited with the building department.
(2)
Street frontages. This section requires that street frontages on certain lots developed after the effective date of this chapter contain a minimum amount of landscaping in those areas which abut the right-of-way of a public street.
A.
All landscaping used to meet this requirement shall be located within ten feet of the public right-of-way. In no instance shall such landscaping be located within a public right-of-way. Landscaping shall not impede vehicle or pedestrian visibility.

Sample Configuration Best Suited for Street Frontages
B.
For every 100 linear feet of street frontage where a developed lot abuts a public street right-of-way, the number of landscape points identified in table 150.604 shall be provided on a prorated basis, and installed and maintained per the requirements of § 150.609.
C.
Shrubs shall not be used to meet this requirement. A minimum of 50 percent of all points shall be devoted to climax and/or tall trees and a minimum of 30 percent of all points shall be devoted to medium trees.
(3)
Paved areas. This section requires that paved areas on certain lots developed after the effective date of this chapter contain a minimum amount of landscaping within, or within ten feet of, the paved area. The intent is to require a continuous visual screen of parking areas from public rights-of-way at a minimum height of 40 inches.
A.
A minimum of 360 square feet of landscaped area, which shall be located within ten feet of the paved area, is required for the placement of every 100 landscaping points. Said area does not have to be provided in one contiguous area. Plants used to fulfill this requirement shall visually screen parking, loading and circulation areas from view from public streets.
Sample Configuration Best Suited for Paved Areas
B.
For every 20 off-street parking stalls or 10,000 square feet of pavement (whichever yields the greater landscaping requirement) located in a development, the number of landscape points identified in table 150.604 shall be provided on a prorated basis, and installed and maintained per the requirements of § 150.609. A minimum of 30 percent of all points shall be devoted to climax and/or tall trees and a minimum of 40 percent of all points shall be devoted to shrubs.
C.
Parking lot design shall employ interior landscaped islands with a minimum of 333 square feet (or two parking spaces) at all parking isle ends, and in addition shall provide a minimum of one landscaped island of a minimum of 333 square feet in each parking isle for every 20 cars in that aisle. Aisle-end islands shall count toward meeting this requirement. Landscaped medians shall be used to break large parking areas into distinct pods, with a maximum of 100 spaces in any one pod.
(4)
Developed lots. This section requires that certain lots developed after the effective date of this chapter contain a minimum amount of landscaping.
A.
Landscaping required by this section is most effective if located away from those areas required for landscaping as building foundations, street frontages, paved areas, protected green space areas, reforestation areas, or bufferyards.
Sample Configuration Best Suited for Developed Lots
B.
The number of landscape points identified in Table 150.604 shall be provided on a prorated basis for every 1,000 square feet of gross floor area, and installed and maintained per the requirements of § 150.609.
C.
The intent of this section is to provide yard shade and to require a visual screen of a minimum of six feet in height for all detached exterior appurtenances (such as HVAC, utility boxes, standpipes, stormwater discharge pipes and other pipes.)
Table 150.604: Landscaping Requirements for Regular Development
Note 1: Landscaping is not required for single-family (§ 150.204(A)), or agricultural (§ 150.204(B)) land uses.
Note 2: Shrubs may be replaced with ornamental grasses and perennials; however, such
replacement shall not exceed 50 percent of the required number of shrubs.
(Ord. No. 801G, § 3, 3-6-06; Ord. No. 24H, § 9, 9-8-09; Ord. No. 164H, § 3, 12-3-12; Ord. No. 701H, § 18, 11-4-24)
(A)
This section requires that each acre of other permanently protected natural resource area after the effective date of this chapter be planted with a minimum amount of landscaping.
(B)
For every one acre of other permanently protected natural resource area in a development, 200 landscaping points shall be provided. In addition, adequate ground cover shall be provided to stabilize the soil.
(Ord. No. 801G, § 3, 3-6-06)
(A)
This section requires that each area required to be reforested, be reforested and maintained in a manner appropriate to site conditions.
Sample Configuration Best Suited for Reforestation
(B)
A detailed reforestation plan shall be submitted by the property owner and approved by the city prior to clear cutting. If the city desires, this plan shall be reviewed by a reforestation consultant chosen by the city, with funding for consulting services provided by the petitioner to the city.
Rationale: The provisions of this section are designed to ensure that reforestation efforts required as part of woodland disruption mitigation standards result in the thorough and reasonably rapid replacement of the important and varied environmental functions which woodlands provide.
(Ord. No. 801G, § 3, 3-6-06)
(A)
Purpose. This section provides the landscaping and width requirements for bufferyards on lots developed after the effective date of this chapter. A bufferyard is a combination of distance and a visual buffer or barrier. It includes an area, together with the combination of plantings, berms, and fencing that is required to eliminate or reduce existing or potential nuisances. These nuisances can often occur between adjacent zoning districts. Such nuisances are dirt, litter, noise, glare of lights, signs, and incompatible land uses, buildings or parking areas.
Rationale: One of zoning's most important functions is the separation of land uses into districts that have similar character and contain compatible uses. The location of districts is supposed to provide protection, but in the city, this is not the case since zoning districts permitting uses as diverse as single-family residential and industrial uses were located next to one another long before the effective date of this chapter. Bufferyards will operate to minimize the negative impact of any future use on neighboring uses.
(B)
Required locations for bufferyards. Bufferyards shall be located along (and within) the outer perimeter of a lot wherever two different zoning districts abut one another. Bufferyards shall not be required in front yards.
(C)
Determination of required bufferyard.
(1)
Identification of required level of opacity. Opacity is a quantitatively-derived measure which indicates the degree to which a particular bufferyard screens the adjoining property. The required level of opacity indicated by table 150.607(C)(2)A. is directly related to the degree to which the potential character of development differs between different zoning districts. The required level of opacity is determined by the value given in the cell of the table at which the column heading along the top row of the table (representing the subject property's zoning district) intersects with the row heading along the left hand side of the table (representing the adjacent property's zoning district). The value listed is the required level of opacity for the bufferyard on the subject property.
(2)
Identification of detailed bufferyard requirements.
A.
If a proposed use adjoins a parcel for which a bufferyard is required by the presence of a zoning district boundary, that use shall provide a bufferyard with the level of the opacity indicated in table 150.607(C)(2)A.
B.
For each level of opacity, a wide variety of width, landscaping point, berm, and structure combinations are possible. The requirements listed in table 150.607(C)(2)B. pertain to the number of landscaping points, the minimum bufferyard width, and the type of berm or fencing required within every 100 feet of required bufferyard. A variety of landscaping point options are available and may be mixed within distinct portions of the same bufferyard.

Sample Configurations Best Suited for Bufferyards
Table 150.607(C)(2)A. Required Bufferyard Opacity Values
*
For properties zoned in the rural holding district (RH), refer to the comprehensive plan's planned land use map to determine the proposed zoning district for said property. For example, if the planned land use map recommends that in the future a property currently zoned RH should develop as planned business, one would use the planned business zoning district to determine the required bufferyard opacity value.
Table 150.607(C)(2)B: Detailed Bufferyard Requirements
*
Fences contributing to landscaping requirements are not permitted along street frontages for nonresidential uses. Where used in combination with plant materials to meet bufferyard requirements, a minimum of 50% of all plant materials shall be located on the exterior side (the side away from the center of the subject property) of the fence. A building wall which does not contain doors (except those used for emergency exit) may be used to satisfy the required fence portions of the bufferyard requirements.
NOTE: Opacity standards provided courtesy of Lane Kendig, Inc.
(Ord. No. 801G, § 3, 3-6-06; Ord. No. 164H, § 3, 12-3-12; Ord. No. 701H, § 19, 11-4-24)
For the purpose of this chapter, plant materials are classified into 13 groupings: "climax tree," "tall deciduous tree," "medium deciduous tree," "low deciduous tree," "tall evergreen tree," "medium evergreen tree," "low evergreen tree," "tall deciduous shrub," "medium deciduous shrub," "low deciduous shrub," "medium evergreen shrub," "low evergreen shrub," and non-contributory plants. Species suitable for landscaping use and compatible with county climate and soil factors are listed in table 150.608, below. The zoning administrator shall review proposals for, and the applicability of, species not contained in this list and is authorized to approve appropriate similar species (see appendix D for a detailed listing of plant species and characteristics).
Table 150.608. Classification of Plants
(Ord. No. 801G, § 3, 3-6-06; Ord. No. 24H, § 10, 9-8-09)
(A)
Installation.
(1)
Any and all landscaping and bufferyard material required by the provisions of this chapter shall be installed on the subject property, in accordance with the approved site plan (see § 150.906) prior to the issuance of an occupancy permit for any building on the subject property, unless a performance bond or similar surety is deposited with the city.
(2)
Surety.
A.
If the subject property is to be occupied prior to the installation of all required landscaping and bufferyard material, the property owner shall sign an agreement stating the intent to install the landscaping with the required period. This agreement shall also contain a statement indicating that there are fines associated with not complying with this agreement.
B.
If a phase of development is approved per the requirements of this Code, required landscaping may be split into amounts which are applicable to each phase.
C.
The zoning administrator shall require a letter of credit, the establishment of an escrow account with the city, or such other surety acceptable to the city to ensure that the landscaping is installed in the event that it is not installed within the time established in the agreement authorized by subsection [(A)(2)A.] above. The escrow agreement or other surety agreement shall be in a form reasonably acceptable to the city and shall grant the city the authority to draw upon the surety or escrow if the landscaping is not installed pursuant to the agreement referenced in subsection [(A)(2)A.] The city, or its designee, shall have the authority to enter upon the property subject to the surety or escrow and install the required landscaping without further permission from the owner. The city shall retain the right to enforce this zoning code, and the landscaping provision contained in this section, by any legal or equitable means.
D.
Governmental units to which these bond and guarantee provisions apply may, in lieu of said contract or instrument of guarantee, file a resolution or letter from officers authorized to act in its behalf, agreeing to comply with the provisions of this article.
(3)
Tree preservation.
1.
All existing trees for which points are being requested must be identified by species and diameter at breast height (DBH) and shown on the landscape plans.
2.
Existing plant materials which meet the requirements of § 150.603 but do not qualify for bonus points as outlined in § 150.609(A)(3)3. may be preserved on the subject property. Following the completion of development, said plants may be counted as contributing to the landscaping requirements.
3.
Trees intended to be preserved that are double the minimum planting size shall be worth a total of 1.5 times the standard landscaping points as outlined in appendix D.
4.
At final inspection, landscaping discovered to have been damaged may not be counted towards the required landscaping and said points shall be replaced with appropriate landscaping.
(4)
All landscaping and bufferyard areas shall be seeded with lawn or native ground cover unless such vegetation is already fully established.
(5)
The exact placement of required plants and structures shall be depicted on the required detailed landscaping plan shall be the decision of each property owner within the requirements of this section, except that the following requirements shall be met:
A.
Evergreen shrubs shall be planted in clusters in order to maximize their chance for survival.
B.
Where a combination of plant materials, and/or berming and/or fencing is used in a bufferyard, the fence and/or berm shall be located toward the interior of the subject property and the plant material shall be located toward the exterior of the subject property.
C.
A property owner may establish through a written agreement, recorded with the register of deeds office, that an adjacent property owner shall agree to provide a partial or full portion of the required bufferyard on an immediately adjacent portion of their land, thereby exempting the developer from providing all or a portion of the bufferyard on his property.
D.
In no manner shall landscaping or bufferyard materials be selected and/or located in a manner that results in the creation of a safety or visibility hazard.
E.
The restrictions on types of plants listed in § 150.604 shall apply.
(B)
Maintenance. The ongoing maintenance of all required landscaping and bufferyard materials shall be a requirement of this chapter and shall be the responsibility of the owner of the property on which said materials are required. This requirement shall run with the property and is binding upon all future property owners. Failure to comply with this requirement shall be considered a violation of this chapter, and shall be subject to any and all applicable enforcement procedures and penalties including, but not limited to affirmative equitable relief.
(C)
Use of required bufferyard and landscaped areas. Any and all required bufferyards or landscaped areas may be used for passive recreation activities. Said areas may contain pedestrian, bike or equestrian trails provided that: no required material is eliminated; the total width of the required bufferyard, or the total area of required landscaping, is maintained; and all other regulations of this chapter are met. In no event, however, shall swimming pools, tennis courts, sports fields, golf courses, or other such active recreation used be permitted in such areas. Furthermore, in no instance shall any parking be permitted in such areas, nor shall any outdoor display or storage of materials be permitted in such areas. Paving in such areas shall be limited to that required for necessary access to, through, or across the subject property.
(D)
Utility easements. Landscaping materials, fences and berms which are located within a duly recorded utility easement and/or a pedestrian easement shall not count toward meeting a landscaping requirement, unless authorized by the zoning administrator. However, the width of such areas may be counted as part of a landscaping requirement.
(Ord. No. 801G, § 3, 3-6-06; Ord. No. 2H, § 1, 1-5-09)
- LANDSCAPING AND BUFFERYARD REGULATIONS
The purpose of article 6 is to provide the minimum landscaping, screening and buffering standards to protect and improve community appearance, mitigate the environmental and aesthetic impacts of new development, prevent the creation of nuisances and health hazards, implement the aesthetic recommendations of the comprehensive plan, and improve quality of life in the city.
(Ord. No. 801G, § 3, 3-6-06)
(A)
Article 6 contains the standards, which govern the amount, size, type, installation and maintenance of required landscaping. Each section of article 6 is oriented to a specific category of required landscaping. The landscaping requirements described in Article 6 of the Ordinance are cumulative in nature and are required for all new developments and building expansions, except single-family residential and agricultural uses. A "landscaping point" concept is used in Article 6 to provide a maximum amount of flexibility in terms of the selection of plant materials.
(B)
Applicability. Any use for which submittal of a site plan is required under § 150.906, or for which a variance is required, shall provide landscaping in accordance with the regulations of article 6, except for additions to existing buildings where insufficient dimensions exist on site. When expanding a development, if additions or enlargements are 50 percent or more of the square footage of existing uses, structures, or vehicular use areas, the landscaping requirements shall apply to the entirety of the site. If the additions or enlargements are less than 50 percent of the square footage of the existing uses, structures, or vehicular use areas, then only the building foundation and paved area requirements shall apply to the expanded structure or vehicular use area.
(C)
Depiction on required site plan. Where a site plan is required for any project under § 150.906, all proposed landscape plantings to be located on the subject property shall be depicted as to their location, type, and size at time of planting and maturity.
(D)
Calculating landscaping and bufferyard requirements. In calculating the number of required landscaping points under the provisions of this section, all areas and distances on which required calculations are based shall be rounded up to the nearest whole number of square feet or linear feet. Any partial plant derived from the required calculations of this section (for example 23.3 canopy trees) shall be rounded up to the nearest whole plant (24 canopy trees).
(Ord. No. 801G, § 3, 3-6-06)
(A)
All landscaping requirements are stated in terms of the number of landscaping points required. The required number of landscaping points is dependent upon the type of land use, the zoning district, and the size of the development. A different number of points is awarded for each plant, depending upon its typical growth rate, its mature height, and whether it is a deciduous or evergreen species. Shrubs may be replaced with ornamental grasses and perennials; however, such replacement shall not exceed 50 percent of the required number of shrubs. A minimum installation size is required for each of these plant categories. These requirements are as follows:
Table 150.603. Landscaping Points and Minimum Installation Sizes
(B)
Measurement for landscaping requirements. A minimum amount of landscaping points, based upon the zoning district, is required for:
(1)
The linear feet building foundations;
(2)
The gross floor area of buildings on developed lots;
(3)
The linear feet of street frontage; and
(4)
The total combined area of paved areas.
The following diagram illustrates the measurement techniques used to determine these
requirements:

Landscape Measurements
Landscape measurements: Landscaping calculation equations for this example:
Paved area = (P 1 × P 2 ) + (P 3 × P 4 ) + (P 5 × P 6 ) + (P 7 × P 8 ) + (P 9 × P 10 )
Street frontage = S 1 + S 2
Building perimeter = F 1 + F 2 + F 3 + F 4 + F 5 + F 6 + F 7 + F 8
Building floor area = (B 1 × B 2 ) + (B 3 × B 4 ) + (B 5 × B 6 )
(Ord. No. 801G, § 3, 3-6-06; Ord. No. 24H, §§ 7, 8, 9-8-09)
(a)
Landscaping is not required for single-family (§ 150.204(A)) or agricultural (§ 150.204(B)) land uses. When expanding a development, if additions or enlargements are 50 percent or more of the square footage of existing uses, structures, or vehicular use areas, the landscaping requirements shall apply to the entirety of the site. If the additions or enlargements are less than 50 percent of the square footage of the existing uses, structures, or vehicular use areas, then only the building foundation and paved area requirements shall apply to the expanded structure or vehicular use area.
(1)
Building foundations. This section requires that certain buildings, or building additions, constructed after the effective date of this chapter be accented by a minimum amount of landscaping placed near the building foundation.
A.
Landscaping required by this section shall be placed so that at maturity, the plant's drip line is located within ten feet of the building foundation. Such landscaping shall not be located in those areas required for landscaping as street frontages, paved areas, protected green space areas, reforestation areas, or bufferyards.

Sample Configuration Best Suited for Building Foundations
B.
For each 100 feet of building foundation perimeter, the number of landscape points identified in table 150.604 shall be provided on a prorated basis, and installed and permanently maintained per the requirements of § 150.609.
C.
Climax trees and tall trees shall not be used to meet this requirement. The intent of this section is to require a visual break in the mass of buildings and to require a visual screen of a minimum of six feet in height for all exterior perimeter appurtenances (such as HVAC/utility boxes, standpipes, stormwater discharge pipes and other pipes).
D.
Where the officially approved site plan depicts a future building extension, the foundation landscaping requirement shall be calculated by measuring the length of the total perimeter. However, foundation plantings need only be installed based on the landscape points calculated from the portions of the building perimeter that will not be affected by building extension. If this results in point requirements, which are not met through the initial planting, then a performance bond for remaining plantings shall be deposited with the building department.
(2)
Street frontages. This section requires that street frontages on certain lots developed after the effective date of this chapter contain a minimum amount of landscaping in those areas which abut the right-of-way of a public street.
A.
All landscaping used to meet this requirement shall be located within ten feet of the public right-of-way. In no instance shall such landscaping be located within a public right-of-way. Landscaping shall not impede vehicle or pedestrian visibility.

Sample Configuration Best Suited for Street Frontages
B.
For every 100 linear feet of street frontage where a developed lot abuts a public street right-of-way, the number of landscape points identified in table 150.604 shall be provided on a prorated basis, and installed and maintained per the requirements of § 150.609.
C.
Shrubs shall not be used to meet this requirement. A minimum of 50 percent of all points shall be devoted to climax and/or tall trees and a minimum of 30 percent of all points shall be devoted to medium trees.
(3)
Paved areas. This section requires that paved areas on certain lots developed after the effective date of this chapter contain a minimum amount of landscaping within, or within ten feet of, the paved area. The intent is to require a continuous visual screen of parking areas from public rights-of-way at a minimum height of 40 inches.
A.
A minimum of 360 square feet of landscaped area, which shall be located within ten feet of the paved area, is required for the placement of every 100 landscaping points. Said area does not have to be provided in one contiguous area. Plants used to fulfill this requirement shall visually screen parking, loading and circulation areas from view from public streets.
Sample Configuration Best Suited for Paved Areas
B.
For every 20 off-street parking stalls or 10,000 square feet of pavement (whichever yields the greater landscaping requirement) located in a development, the number of landscape points identified in table 150.604 shall be provided on a prorated basis, and installed and maintained per the requirements of § 150.609. A minimum of 30 percent of all points shall be devoted to climax and/or tall trees and a minimum of 40 percent of all points shall be devoted to shrubs.
C.
Parking lot design shall employ interior landscaped islands with a minimum of 333 square feet (or two parking spaces) at all parking isle ends, and in addition shall provide a minimum of one landscaped island of a minimum of 333 square feet in each parking isle for every 20 cars in that aisle. Aisle-end islands shall count toward meeting this requirement. Landscaped medians shall be used to break large parking areas into distinct pods, with a maximum of 100 spaces in any one pod.
(4)
Developed lots. This section requires that certain lots developed after the effective date of this chapter contain a minimum amount of landscaping.
A.
Landscaping required by this section is most effective if located away from those areas required for landscaping as building foundations, street frontages, paved areas, protected green space areas, reforestation areas, or bufferyards.
Sample Configuration Best Suited for Developed Lots
B.
The number of landscape points identified in Table 150.604 shall be provided on a prorated basis for every 1,000 square feet of gross floor area, and installed and maintained per the requirements of § 150.609.
C.
The intent of this section is to provide yard shade and to require a visual screen of a minimum of six feet in height for all detached exterior appurtenances (such as HVAC, utility boxes, standpipes, stormwater discharge pipes and other pipes.)
Table 150.604: Landscaping Requirements for Regular Development
Note 1: Landscaping is not required for single-family (§ 150.204(A)), or agricultural (§ 150.204(B)) land uses.
Note 2: Shrubs may be replaced with ornamental grasses and perennials; however, such
replacement shall not exceed 50 percent of the required number of shrubs.
(Ord. No. 801G, § 3, 3-6-06; Ord. No. 24H, § 9, 9-8-09; Ord. No. 164H, § 3, 12-3-12; Ord. No. 701H, § 18, 11-4-24)
(A)
This section requires that each acre of other permanently protected natural resource area after the effective date of this chapter be planted with a minimum amount of landscaping.
(B)
For every one acre of other permanently protected natural resource area in a development, 200 landscaping points shall be provided. In addition, adequate ground cover shall be provided to stabilize the soil.
(Ord. No. 801G, § 3, 3-6-06)
(A)
This section requires that each area required to be reforested, be reforested and maintained in a manner appropriate to site conditions.
Sample Configuration Best Suited for Reforestation
(B)
A detailed reforestation plan shall be submitted by the property owner and approved by the city prior to clear cutting. If the city desires, this plan shall be reviewed by a reforestation consultant chosen by the city, with funding for consulting services provided by the petitioner to the city.
Rationale: The provisions of this section are designed to ensure that reforestation efforts required as part of woodland disruption mitigation standards result in the thorough and reasonably rapid replacement of the important and varied environmental functions which woodlands provide.
(Ord. No. 801G, § 3, 3-6-06)
(A)
Purpose. This section provides the landscaping and width requirements for bufferyards on lots developed after the effective date of this chapter. A bufferyard is a combination of distance and a visual buffer or barrier. It includes an area, together with the combination of plantings, berms, and fencing that is required to eliminate or reduce existing or potential nuisances. These nuisances can often occur between adjacent zoning districts. Such nuisances are dirt, litter, noise, glare of lights, signs, and incompatible land uses, buildings or parking areas.
Rationale: One of zoning's most important functions is the separation of land uses into districts that have similar character and contain compatible uses. The location of districts is supposed to provide protection, but in the city, this is not the case since zoning districts permitting uses as diverse as single-family residential and industrial uses were located next to one another long before the effective date of this chapter. Bufferyards will operate to minimize the negative impact of any future use on neighboring uses.
(B)
Required locations for bufferyards. Bufferyards shall be located along (and within) the outer perimeter of a lot wherever two different zoning districts abut one another. Bufferyards shall not be required in front yards.
(C)
Determination of required bufferyard.
(1)
Identification of required level of opacity. Opacity is a quantitatively-derived measure which indicates the degree to which a particular bufferyard screens the adjoining property. The required level of opacity indicated by table 150.607(C)(2)A. is directly related to the degree to which the potential character of development differs between different zoning districts. The required level of opacity is determined by the value given in the cell of the table at which the column heading along the top row of the table (representing the subject property's zoning district) intersects with the row heading along the left hand side of the table (representing the adjacent property's zoning district). The value listed is the required level of opacity for the bufferyard on the subject property.
(2)
Identification of detailed bufferyard requirements.
A.
If a proposed use adjoins a parcel for which a bufferyard is required by the presence of a zoning district boundary, that use shall provide a bufferyard with the level of the opacity indicated in table 150.607(C)(2)A.
B.
For each level of opacity, a wide variety of width, landscaping point, berm, and structure combinations are possible. The requirements listed in table 150.607(C)(2)B. pertain to the number of landscaping points, the minimum bufferyard width, and the type of berm or fencing required within every 100 feet of required bufferyard. A variety of landscaping point options are available and may be mixed within distinct portions of the same bufferyard.

Sample Configurations Best Suited for Bufferyards
Table 150.607(C)(2)A. Required Bufferyard Opacity Values
*
For properties zoned in the rural holding district (RH), refer to the comprehensive plan's planned land use map to determine the proposed zoning district for said property. For example, if the planned land use map recommends that in the future a property currently zoned RH should develop as planned business, one would use the planned business zoning district to determine the required bufferyard opacity value.
Table 150.607(C)(2)B: Detailed Bufferyard Requirements
*
Fences contributing to landscaping requirements are not permitted along street frontages for nonresidential uses. Where used in combination with plant materials to meet bufferyard requirements, a minimum of 50% of all plant materials shall be located on the exterior side (the side away from the center of the subject property) of the fence. A building wall which does not contain doors (except those used for emergency exit) may be used to satisfy the required fence portions of the bufferyard requirements.
NOTE: Opacity standards provided courtesy of Lane Kendig, Inc.
(Ord. No. 801G, § 3, 3-6-06; Ord. No. 164H, § 3, 12-3-12; Ord. No. 701H, § 19, 11-4-24)
For the purpose of this chapter, plant materials are classified into 13 groupings: "climax tree," "tall deciduous tree," "medium deciduous tree," "low deciduous tree," "tall evergreen tree," "medium evergreen tree," "low evergreen tree," "tall deciduous shrub," "medium deciduous shrub," "low deciduous shrub," "medium evergreen shrub," "low evergreen shrub," and non-contributory plants. Species suitable for landscaping use and compatible with county climate and soil factors are listed in table 150.608, below. The zoning administrator shall review proposals for, and the applicability of, species not contained in this list and is authorized to approve appropriate similar species (see appendix D for a detailed listing of plant species and characteristics).
Table 150.608. Classification of Plants
(Ord. No. 801G, § 3, 3-6-06; Ord. No. 24H, § 10, 9-8-09)
(A)
Installation.
(1)
Any and all landscaping and bufferyard material required by the provisions of this chapter shall be installed on the subject property, in accordance with the approved site plan (see § 150.906) prior to the issuance of an occupancy permit for any building on the subject property, unless a performance bond or similar surety is deposited with the city.
(2)
Surety.
A.
If the subject property is to be occupied prior to the installation of all required landscaping and bufferyard material, the property owner shall sign an agreement stating the intent to install the landscaping with the required period. This agreement shall also contain a statement indicating that there are fines associated with not complying with this agreement.
B.
If a phase of development is approved per the requirements of this Code, required landscaping may be split into amounts which are applicable to each phase.
C.
The zoning administrator shall require a letter of credit, the establishment of an escrow account with the city, or such other surety acceptable to the city to ensure that the landscaping is installed in the event that it is not installed within the time established in the agreement authorized by subsection [(A)(2)A.] above. The escrow agreement or other surety agreement shall be in a form reasonably acceptable to the city and shall grant the city the authority to draw upon the surety or escrow if the landscaping is not installed pursuant to the agreement referenced in subsection [(A)(2)A.] The city, or its designee, shall have the authority to enter upon the property subject to the surety or escrow and install the required landscaping without further permission from the owner. The city shall retain the right to enforce this zoning code, and the landscaping provision contained in this section, by any legal or equitable means.
D.
Governmental units to which these bond and guarantee provisions apply may, in lieu of said contract or instrument of guarantee, file a resolution or letter from officers authorized to act in its behalf, agreeing to comply with the provisions of this article.
(3)
Tree preservation.
1.
All existing trees for which points are being requested must be identified by species and diameter at breast height (DBH) and shown on the landscape plans.
2.
Existing plant materials which meet the requirements of § 150.603 but do not qualify for bonus points as outlined in § 150.609(A)(3)3. may be preserved on the subject property. Following the completion of development, said plants may be counted as contributing to the landscaping requirements.
3.
Trees intended to be preserved that are double the minimum planting size shall be worth a total of 1.5 times the standard landscaping points as outlined in appendix D.
4.
At final inspection, landscaping discovered to have been damaged may not be counted towards the required landscaping and said points shall be replaced with appropriate landscaping.
(4)
All landscaping and bufferyard areas shall be seeded with lawn or native ground cover unless such vegetation is already fully established.
(5)
The exact placement of required plants and structures shall be depicted on the required detailed landscaping plan shall be the decision of each property owner within the requirements of this section, except that the following requirements shall be met:
A.
Evergreen shrubs shall be planted in clusters in order to maximize their chance for survival.
B.
Where a combination of plant materials, and/or berming and/or fencing is used in a bufferyard, the fence and/or berm shall be located toward the interior of the subject property and the plant material shall be located toward the exterior of the subject property.
C.
A property owner may establish through a written agreement, recorded with the register of deeds office, that an adjacent property owner shall agree to provide a partial or full portion of the required bufferyard on an immediately adjacent portion of their land, thereby exempting the developer from providing all or a portion of the bufferyard on his property.
D.
In no manner shall landscaping or bufferyard materials be selected and/or located in a manner that results in the creation of a safety or visibility hazard.
E.
The restrictions on types of plants listed in § 150.604 shall apply.
(B)
Maintenance. The ongoing maintenance of all required landscaping and bufferyard materials shall be a requirement of this chapter and shall be the responsibility of the owner of the property on which said materials are required. This requirement shall run with the property and is binding upon all future property owners. Failure to comply with this requirement shall be considered a violation of this chapter, and shall be subject to any and all applicable enforcement procedures and penalties including, but not limited to affirmative equitable relief.
(C)
Use of required bufferyard and landscaped areas. Any and all required bufferyards or landscaped areas may be used for passive recreation activities. Said areas may contain pedestrian, bike or equestrian trails provided that: no required material is eliminated; the total width of the required bufferyard, or the total area of required landscaping, is maintained; and all other regulations of this chapter are met. In no event, however, shall swimming pools, tennis courts, sports fields, golf courses, or other such active recreation used be permitted in such areas. Furthermore, in no instance shall any parking be permitted in such areas, nor shall any outdoor display or storage of materials be permitted in such areas. Paving in such areas shall be limited to that required for necessary access to, through, or across the subject property.
(D)
Utility easements. Landscaping materials, fences and berms which are located within a duly recorded utility easement and/or a pedestrian easement shall not count toward meeting a landscaping requirement, unless authorized by the zoning administrator. However, the width of such areas may be counted as part of a landscaping requirement.
(Ord. No. 801G, § 3, 3-6-06; Ord. No. 2H, § 1, 1-5-09)