5. - OVERLAY AND ENVIRONMENTAL MANAGEMENT DISTRICTS
The Districts described in this Article do not establish uses or categorize uses. These Districts, however, do regulate allowable uses in a manner to mitigate adverse impacts of such uses upon the natural or man-made environment; or regulate development so as to mitigate potential dangers to the use of such developed land, or to otherwise implement policies and objectives of the Comprehensive Plan. Overlay and environmental management districts need not be shown on the Official Zoning Map.
[Amd. Ord. 01-12 8/21/12]
(A)
General. In recognition of findings as set forth in the original enactment of Ordinance 13-87, passed March 10, 1987, this Section is created in order to provide for the identification, preservation, protection, enhancement, perpetuation, and the use of districts, archeological sites, buildings, structures, improvements, and appurtenances that are reminders of past eras, events, and persons important in local, state, and national history; that provide significant examples of architectural styles of the past; that are unique and irreplaceable assets to the City and its neighborhoods; or that provide this and future generations with examples of the physical surroundings in which past generations lived; and other purposes.
(B)
Criteria for historic designation of districts, sites, and buildings. [Amd. Ord. 01-12 8/21/12]
(1)
To qualify as a historic site, historic district, historic structure, or historic interior, individual properties, structures, sites, or buildings, or groups of properties, structures, sites, or buildings must have significant character, interest, or value as part of the historical, cultural, aesthetic, and architectural heritage of the city, state, or nation. To qualify as a historic site, historic district, or historic structure, the property or properties must fulfill one or more of the criteria set forth in subsection (2) or (3) below; to qualify as a historic interior the interior must fulfill one or more of the criteria set forth in subsection (2) and meet the criteria set forth in subsections (3)(b) and (3)(d). [Amd. Ord. 38-07 2/5/08]
(2)
A building, structure, site, interior, or district will be deemed to have historical or cultural significance if it meets one or more of the following criteria:
(a)
Is associated in a significant way with the life or activities of a major person important in city, state, or national history (for example, the homestead of a local founding family);
(b)
Is the site of a historic event with significant effect upon the city, state, or nation;
(c)
Is associated in a significant way with a major historic event, whether cultural, economic, social, military, or political;
(d)
Exemplifies the historical, political, cultural, economic, or social trends of the community in history; or,
(e)
Is associated in a significant way with a past or continuing institution which has contributed substantially to the life of the city.
(3)
A building, structure, site, or district is deemed to have architectural or aesthetic significance if it fulfills one or more of the following criteria; except that to qualify as a historic interior, the interior must meet the criteria contained within subsections (3)(b) and (3)(d):
(a)
Portrays the environment in an era of history characterized by one or more distinctive architectural styles;
(b)
Embodies those distinguishing characteristics of an architectural style, period, or method of construction;
(c)
Is a historic or outstanding work of a prominent architect, designer, landscape architect, or builder; or
(d)
Contains elements of design, detail, material, or craftsmanship of outstanding quality or which represented, in its time, a significant innovation or adaptation to the South Florida environment.
(4)
A building, structure, site, interior, or district will be deemed to have historic significance if, in addition to or in the place of the previously mentioned criteria, the building, structure, site, or zone meets historic development standards as defined by and listed in the regulations of and criteria for the National Register of Historic Places, as prepared by the United States Department of the Interior under the Historic Preservation Act of 1966, as amended. A copy of these standards for the National Register is made part of this section as if fully set forth herein.
(C)
Procedures for historic designation. [Amd. Ord. 01-12 8/21/12]
(1)
Buildings, structures, archaeological sites, or districts which meet the criteria for historic sites or districts set forth in Section 4.5.1(B) may be designated as historic sites or districts, and listed on the Local Register of Historic Places. [Amd. Ord. 01-12 8/21/12]
(2)
Nominations for historical site or district designation shall be made to the Historic Preservation Board on an application form developed and approved by the Board.
(a)
Nominations for historic site status may be initiated by:
(1)
The Historic Preservation Board;
(2)
The City Commission; or
(3)
The property owner.
(b)
Nominations for historic district status may be initiated by:
(1)
The Historic Preservation Board;
(2)
The City Commission; or
(3)
The property owner(s). [Amd. Ord. 01-12 8/21/12]
(3)
A preliminary evaluation of the information provided on each nomination application shall be conducted by the Historic Preservation Planner to determine if it generally conforms with historic status criteria. A designation report shall then be prepared which contains the following: [Amd. Ord. 01-12 8/21/12]; [Amd. Ord. 30-91 3/26/91]
(a)
Proposed legal boundaries of the historic building, archaeological site, structure, or district; [Amd. Ord. 30-91 3/26/91]
(b)
Any proposed conditional zoning regulations designed to replace or complement existing zoning regulations with regard to, but not limited to use, floor area, density, height, setbacks, parking, and minimum lot size; [Amd. Ord. 30-91 3/26/91]
(c)
Analysis of the historic significance and character of the nominated property; and [Amd. Ord. 30-91 3/26/91]
(d)
Analysis of optional historic interiors for those buildings and structures with interior features of exceptional architectural, aesthetic, artistic, or historic significance. [Amd. Ord. 30-91 3/26/91]
(4)
A public hearing before the HPB shall be set, and notice of said hearing shall be made to the owner(s) of affected property at least ten days prior to the hearing by regular mail. Additional notice shall be given in the same manner as provided for a rezoning action [see Section 2.4.2(B)(1)(b)] and by notice published in the newspaper at least ten days prior to the hearing, provided, however, posting pursuant to 2.4.2(B)(1)(b) is not required. [Amd. Ord. 01-12 8/21/12]; [Amd. Ord. 78-04 1/18/05]; [Amd. Ord. 30-91 3/26/91]
DELETED (5) AND RENUMBERED [Amd. Ord. 24-05 4/19/05]
(5)
After conducting the public hearing, the Historic Preservation Board shall vote on the designation. A majority of the entire Board, present and voting, must act in the affirmative to approve the designation. The City Commission shall consider the recommendation of the Historic Preservation Board through its standard ordinance adoption procedures. [Amd. Ord. 01-12 8/21/12]; [Amd. Ord. 24-05 4/19/05]; [Amd. Ord. 30-91 3/26/91]
DELETED (6) AND RENUMBERED [Amd. Ord. 01-12 8/21/12]
(6)
The Board will issue an official "certificate of historic significance" to owner(s) of properties which are individually designated or classified as contributing to a historic district listed on the Local Register of Historic Places, as identified in Section 4.5.1(I). [Amd. Ord. 01-12 8/21/12]; [Amd. Ord. 24-05 4/19/05]; [Amd. Ord. 30-91 3/26/91]
(D)
Development review and approval procedures. Pursuant to Section 2.4.6(H), approval of a Certificate of Appropriateness (COA) must be obtained from the Historic Preservation Board prior to the exterior improvement of any property, building, or structure located within a Historic District or Individually Designated Site, as listed on the Local Register of Historic Places in Section 4.5.1(I). The COA process may occur concurrently with the processing of any additional reviews required for any such improvement of development. [Amd. Ord. 01-12 8/21/12]; [Amd. Ord. 30-08 09/16/08]
(E)
Development standards. All new development or exterior improvements on individually designated historic properties and/or properties located within historic districts shall, comply with the goals, objectives, and policies of the Comprehensive Plan, the Delray Beach Historic Preservation Design Guidelines, the Secretary of the Interior's Standards for Rehabilitation, and the Development Standards of this Section. Relief from Subsections (1) through (9) below may be granted by seeking a waiver approvable by the Historic Preservation Board, unless otherwise stated. [Amd. Ord. 01-12 8/21/12]; [Amd. Ord. 38-07 2/5/08]
(1)
Exterior architectural features. For the purpose of this Section, exterior architectural features shall include, but not be limited to the following: [Amd. Ord. 38-07 2/5/08]
(a)
The architectural style, scale, general design, and general arrangement of the structure's exterior;
(b)
The type and texture of building material; and
(c)
The type and style of all roofs, windows, doors, and signs.
(2)
Major and minor development. For the purposes of this section, major and minor development standards shall be applied as noted in the following table: [Amd. Ord. 01-12 8/21/12]; [Amd. Ord. 38-07 2/5/08]
Notes:
1. All development on individually designated properties in all zoning districts is Minor.
2. All development on properties in the OSSHAD district which are subject to CBD regulations pursuant to Section 4.4.24(B)(12) is Minor.
(a)
For the purposes of this section, "residential" includes single family, duplexes and multifamily in all historic districts and all development, regardless of use, in the Residential Office (RO) zoning district. [Amd. Ord. 38-07 2/5/08]
(b)
Major development shall be considered: [Amd. Ord. 38-07 2/5/08]
1.
New construction in all historic districts except CBD and CF zoned properties and properties zoned OSSHAD subject to Development Standards of Section 4.4.13(F); or, [Amd. Ord. 01-12 8/21/12]; [Amd. Ord. 38-07 2/5/08]
2.
The construction, reconstruction, or alteration of a building in excess of 25 percent of the existing floor area, and all appurtenances, except for properties zoned CBD, CF, or OSSHAD, subject to Development Standards of Section 4.4.13(F). For the purposes of this section, all limitations and regulations shall be reviewed in a cumulative manner from the date of passage of this ordinance in 2008; or, [Amd. Ord. 01-12 8/21/12]; [Amd. Ord. 38-07 2/5/08]
3.
The construction, reconstruction, or alteration of any part of the front façade of an existing contributing residential or non-residential structure and all appurtenances, except for properties zoned CBD, CF, or OSSHAD, subject to Development Standards of Section 4.4.13(F). [Amd. Ord. 01-12 8/21/12]; [Amd. Ord. 38-07 2/5/08]
(c)
Minor development shall be considered: [Amd. Ord. 38-07 2/5/08]
1.
New construction in all historic districts on property zoned CBD, CF, or OSSHAD subject to the Development Standards of Section 4.4.13(F); or, [Amd. Ord. 01-12 8/21/12]; [Amd. Ord. 38-07 2/5/08]
2.
Modifications to existing contributing and noncontributing structures in all historic districts on property zoned CBD, CF, or OSSHAD subject to the Development Standards of Section 4.4.13(F); or, [Amd. Ord. 01-12 8/21/12]; [Amd. Ord. 38-07 2/5/08]
3.
The construction, reconstruction, or alteration of any part of the front façade of an existing noncontributing residential or non-residential structures and all appurtenances; or, [Amd. Ord. 38-07 2/5/08]
4.
The construction, reconstruction, or alteration of less than 25 percent of the existing floor area of the building and all appurtenances. For purposes of this section, all limitations and regulations shall be reviewed in a cumulative manner from the date of passage of this ordinance in 2008. [Amd. Ord. 38-07 2/5/08]
5.
Any changes to Individually Historically Designated properties, whether already on site or newly designated, to help facilitate the move of a historic structure into a historic district. [Amd. Ord. 38-07 2/5/08]
(3)
Buildings, structures, appurtenances and parking. Buildings, structures, appurtenances and parking shall only be moved, reconstructed, altered, or maintained, in accordance with this chapter, in a manner that will preserve the historical and architectural character of the building, structure, site, or district: [Amd. Ord. 38-07 2/5/08]
DELETED (a) AND RELETTERED [Amd. Ord. 38-07 2/5/08]
(a)
Appurtenances. Appurtenances include, but are not limited to, stone walls, fences, light fixtures, steps, paving, sidewalks, signs, and accessory structures. [Amd. Ord. 38-07 2/5/08]
1.
Fences and walls. The provisions of Section 4.6.5 shall apply, except as modified below: [Amd. Ord. 01-12 8/21/12]; [Amd. Ord. 38-07 2/5/08]
a.
Chain-link fences are discouraged. When permitted, chain-link fences shall be clad in a green or black vinyl and only used in rear yards where they are not visible from a public right-of-way, even when screened by a hedge or other landscaping. [Amd. Ord. 01-12 8/21/12]; [Amd. Ord. 38-07 2/5/08]
b.
Swimming pool fences shall be designed in a manner that integrates the layout with the lot and structures without exhibiting a utilitarian or stand-alone appearance. [Amd. Ord. 38-07 2/5/08]
c.
Fences and walls over four feet shall not be allowed in front or side street setbacks. [Amd. Ord. 38-07 2/5/08]
d.
Non-historic and/or synthetic materials are discouraged, particularly when visible from a public right-of-way. [Amd. Ord. 01-12 8/21/12]
e.
Decorative landscape features, including but not limited to, arbors, pergolas, and trellises shall not exceed a height of eight feet within the front or side street setbacks. [Amd. Ord. 01-12 8/21/12]
2.
Garages and carports. [Amd. Ord. 38-07 2/5/08]
a.
Garages and carports are encouraged to be oriented so that they may be accessed from the side or rear and out of view from a public right-of-way. [Amd. Ord. 01-12 8/21/12]
b.
The orientation of garages and carports shall be consistent with the historic development pattern of structures of a similar architectural style within the district. [Amd. Ord. 01-12 8/21/12]
c.
The enclosure of carports is discouraged. When permitted, the enclosure of the carport should maintain the original details, associated with the carport, such as decorative posts, columns, roof planes, and other features. [Amd. Ord. 01-12 8/21/12]
d.
Garage doors shall be designed to be compatible with the architectural style of the principal structure and should include individual openings for vehicles rather than two car expanses of doors. Metal two car garage doors are discouraged; however, if options are limited and metal is proposed, the doors must include additional architectural detailing appropriate to the building. [Amd. Ord. 01-12 8/21/12]
(b)
Parking. [Amd. Ord. 38-07 2/5/08]
1.
Parking areas shall strive to contribute to the historic nature of the properties/districts in which they are located by use of creative design and landscape elements to buffer parking areas from adjacent historic structures. At a minimum, the following criteria shall be considered: [Amd. Ord. 01-12 8/21/12]; [Amd. Ord. 38-07 2/5/08]
a.
Locate parking adjacent to the building or in the rear. [Amd. Ord. 38-07 2/5/08]
b.
Screen parking that can be viewed from a public right-of-way with fencing, landscaping, or a combination of the two. [Amd. Ord. 01-12 8/21/12]; [Amd. Ord. 38-07 2/5/08]
c.
Utilize existing alleys to provide vehicular access to sites. [Amd. Ord. 38-07 2/5/08]
d.
Construct new curb cuts and street side driveways only in areas where they are appropriate or existed historically. [Amd. Ord. 38-07 2/5/08]
e.
Use appropriate materials for driveways. [Amd. Ord. 01-12 8/21/12]; [Amd. Ord. 38-07 2/5/08]
f.
Driveway type and design should convey the historic character of the district and the property. [Amd. Ord. 01-12 8/21/12]; [Amd. Ord. 38-07 2/5/08]
2.
Where feasible, and appropriate, alternative methods of meeting minimum parking standards contained in Sections 4.6.9(C)(8) and/or 4.6.9(E), as applicable, shall be explored to avoid excessive use of historic properties and/or properties located in historic districts for parking. [Amd. Ord. 01-12 8/21/12]; [Amd. Ord. 38-07 2/5/08]
3.
In accordance with Section 4.6.9(F)(1), the Historic Preservation Board may reduce the parking requirement when, upon receipt and special documentation, it is conclusively demonstrated that a reduced number of parking spaces will accommodate a specific use. [Amd. Ord. 01-12 8/21/12]
(4)
Alterations. In considering proposals for alterations to the exterior of historic buildings and structures and in applying development and preservation standards, the documented, original design of the building may be considered, among other factors. [Amd. Ord. 38-07 2/5/08]
(5)
Standards and guidelines. A historic site, building, structure, improvement, or appurtenance within a historic district shall only be altered, restored, preserved, repaired, relocated, demolished, or otherwise changed in accordance with the Secretary of the Interior's Standards for Rehabilitation, and the Delray Beach Historic Preservation Design Guidelines, as amended from time to time. [Amd. Ord. 38-07 2/5/08]
(6)
Relocation. [Amd. Ord. 30-08 09/16/08]; [Amd. Ord. 38-07 2/5/08]
(a)
Relocation of a structures in a historic district or on an individually designated site. Relocation of a contributing or non-contributing building or structure or an individually designated building or structure to another site shall not take place unless it is shown that preservation on their existing or original site would cause undue economic hardship to the property owner in accordance with definition and requirements of undue economic hardship found in Section 4.5.1(H) or a building permit has been issued. [Amd. Ord. 13-15 08/18/2015] [Amd. Ord. 01-12 8/21/12]
(b)
Relocation of contributing or individually designated structures.
1.
Criteria. When considering the relocation of a contributing structure from a historic district, or an individually designated structure from a site, the Board shall be guided by the following, as applicable: [Amd. Ord. 13-15 08/18/2015]
a.
Whether the structure will be relocated within the same historic district, into a new historic district, or outside of a historic district; [Amd. Ord. 13-15 08/18/2015]
b.
Whether the proposed relocation may have a detrimental effect on the structural soundness of the building or structure; [Amd. Ord. 13-15 08/18/2015]
c.
Whether the proposed relocation would have a negative or positive effect on other historic sites, buildings, or structures within the originating historic district, at the new site; [Amd. Ord. 13-15 08/18/2015]
d.
Whether the new surroundings of the relocated structure would be compatible with its architectural character; and, [Amd. Ord. 13-15 08/18/2015]
e.
Whether the proposed relocation is the only practicable means of saving the structure from demolition. [Amd. Ord. 13-15 08/18/2015]
2.
Relocation plan. When considering the relocation of a contributing or individually designated structure, the Board shall require a Relocation Plan that includes the following: [Amd. Ord. 13-15 08/18/2015]
a.
A detailed explanation of the relocation method including the type of machinery and equipment to be utilized; [Amd. Ord. 13-15 08/18/2015]
b.
A demolition plan illustrating any parts of the structure to be removed or modified to facilitate the relocation; [Amd. Ord. 13-15 08/18/2015]
c.
An illustration of locations where the building will be split, as applicable; [Amd. Ord. 13-15 08/18/2015]
d.
The name of the Florida Licensed Building Mover who will relocate the structure(s) and the following support materials, if available: [Amd. Ord. 13-15 08/18/2015]
i.
A description of the Florida Licensed Building Mover's past experience in moving historic buildings of a similar construction technique. [Amd. Ord. 13-15 08/18/2015]
ii.
Photographs of prior relocation projects completed by the Florida Licensed Building Mover taken before and after the relocation, if applicable. [Amd. Ord. 13-15 08/18/2015]
e.
A certified engineering report which includes: [Amd. Ord. 13-15 08/18/2015]
i.
A relocation feasibility study with an assessment of the building's structural condition to determine any damage that might occur during the move. [Amd. Ord. 13-15 08/18/2015]
ii.
Details and a description of the historic structure's construction type including technique and materials and current condition of materials. [Amd. Ord. 13-15 08/18/2015]
iii.
Identification of any areas of concern, and how these areas will be addressed prior to the relocation. [Amd. Ord. 13-15 08/18/2015]
DELETED 1. AND RENUMBERED [Amd. Ord. 01-12 8/21/12]
3.
Supplemental documentation. The following information shall be provided with the application for a Certificate of Appropriateness for relocation of a contributing or individually designated structure prior to Board consideration: [Amd. Ord. 13-15 08/18/2015]
a.
As built drawings of the building as it exists on its originating site before undertaking the move, particularly if the move will require substantial reconstruction, including but not limited to floor plans, elevations, and architectural details and profiles. [Amd. Ord. 13-15 08/18/2015]
b.
Photographs of the site and the interior and exterior of the building, including but not limited to all elevations and exterior details. [Amd. Ord. 13-15 08/18/2015]
c.
History of any code violations applied to the structure and property, along with an explanation of any pending violations or structure violations which have been issued within five years of the application request. [Amd. Ord. 13-15 08/18/2015]
4.
Concurrent new development review. Applications for a Certificate of Appropriateness for relocation shall be submitted concurrently with the application for a Certificate of Appropriateness for the new development on the originating site. [Amd. Ord. 13-15 08/18/2015]
5.
Site Maintenance. If the originating site is to remain vacant and construction of the new development will not commence for more than 90 days following the relocation, the lot shall be sodded and maintained in a manner consistent with other open space in the historic district. [Amd. Ord. 13-15 08/18/2015]
6.
Successful or unsuccessful relocation. The relocation of a historic structure is deemed successful when either no damage occurs during or as a result of the relocation or minimal damage occurs which is not deemed to compromise the integrity (structurally and architecturally) of the structure, and when the relocation is completed in accordance with the approved Certificate of Appropriateness, including the associated Relocation Plan. [Amd. Ord. 13-15 08/18/2015]
a.
If damage occurs during the relocation, then the property owner, applicant and/or Licensed Building Mover shall notify the Historic Preservation Planner and Chief Building Official within 24 hours of completion of the move to determine if the damage has compromised the integrity of the structure, thereby deeming the relocation as unsuccessful. [Amd. Ord. 13-15 08/18/2015]
b.
If a relocation is not successful, then the property owner and/or applicant shall notify the Historic Preservation Planner and Chief Building Official within 24 hours of the failed relocation, or before the close of business on the next business day. [Amd. Ord. 13-15 08/18/2015]
c.
Failure of any degree to successfully relocate the historic structure may result in the revocation of any site development relief (waivers, variances, internal adjustments, or other relief) associated with the relocation that has been granted by the Board or the City Commission, as required by the Planning and Zoning Director. [Amd. Ord. 13-15 08/18/2015]
d.
The applicant or property owner may submit a written request for the reconsideration of any previously approved site development relief associated with the unsuccessfully relocated structure in accordance with the following: [Amd. Ord. 13-15 08/18/2015]
i.
The reconsideration request shall be submitted to the Planning and Zoning Director within five business days of notification of the unsuccessful relocation. The reconsideration will be placed on the next available agenda of the recommending or approving body as appropriate. [Amd. Ord. 13-15 08/18/2015]
ii.
Requests for reconsideration shall include a statement regarding the relocation, documentation of the relocation, an explanation of the relocation failure, and how the relocation failed to meet the Relocation Plan of the approved Certificate of Appropriateness and the corrective actions to address issues caused by failed relocation. [Amd. Ord. 13-15 08/18/2015]
7.
Public notice. All applications for a Certificate of Appropriateness for the relocation of a contributing structure or an individually designated structure shall meet the "Additional Public Notice" requirements of LDR Section 2.4.2(B)(1)(j). [Amd. Ord. 13-15 08/18/2015]
(c)
Relocation of eligible historic structures into a historic district or on an individually designated site. An eligible historic structure is one which is not presently located within a historic district or is individually designated, and meets the criteria for Individually Designated for listing on the Local Register of Historic Places as outlined in LDR Section 4.5.1(B). [Amd. Ord. 13-15 08/18/2015]
1.
When considering the relocation of an eligible historic structure into a historic district, or onto an individually designated site, the Board shall be guided by the following, as applicable: [Amd. Ord. 13-15 08/18/2015]
a.
Whether the proposed relocation would have a positive effect on other historic sites, buildings, or structures within the historic district into which it will be relocated, or at the new site. [Amd. Ord. 13-15 08/18/2015]
b.
Whether the new surroundings of the relocated structure would be compatible with its architectural character. [Amd. Ord. 13-15 08/18/2015]
2.
When a relocation permit is issued for an eligible historic structure which will be relocated into a historic district, the structure shall be required to be individually designated to the new location for listing on the Local Register of Historic Places prior to receiving the final inspection of the relocation permit. [Amd. Ord. 13-15 08/18/2015]
3.
Relocation plan. When considering the relocation of an eligible historic structure, the Board shall require a Relocation Plan that includes the following: [Amd. Ord. 13-15 08/18/2015]
a.
A demolition plan illustrating any parts to be removed to facilitate the relocation. [Amd. Ord. 13-15 08/18/2015]
b.
An illustration of locations where the building will be split, as applicable. [Amd. Ord. 13-15 08/18/2015]
4.
Relocation review. Applications for the relocation of eligible historic structures, whether into a historic district or onto an individually designated site, may be administratively approved subject to compliance with the following: [Amd. Ord. 13-15 08/18/2015]
a.
That the request meets the applicable Development Standards of Section 4.3.4(K); [Amd. Ord. 13-15 08/18/2015]
b.
That the request meets the requirements of the zoning district to which it will be relocated; [Amd. Ord. 13-15 08/18/2015]
c.
That the request does not require any relief to accommodate the relocated structure; and, [Amd. Ord. 13-15 08/18/2015]
d.
That no alterations of the structure are to occur to the structure. Alterations to the structure and/or property require a separate application. [Amd. Ord. 13-15 08/18/2015]
e.
The relocation of eligible historic structures to non-conforming properties shall be considered in accordance with LDR Section 4.1.4(E). [Amd. Ord. 13-15 08/18/2015]
5.
Supplemental documentation. Photographs of the site and the interior and exterior of the building, including but not limited to all elevations and exterior details shall be provided with the application for a Certificate of Appropriateness for relocation of an eligible historic structure prior to Board consideration. [Amd. Ord. 13-15 08/18/2015]
6.
Successful relocation. The relocation of an eligible historic structure is deemed successful when either no damage occurs during or as a result of the relocation or minimal damage occurs which is not deemed to compromise the integrity (structurally and architecturally) of the structure, and when the relocation is completed in accordance with the approved Certificate of Appropriateness, including the associated Relocation Plan. If damage occurs during the relocation, then the property owner and/or applicant shall notify the Historic Preservation Planner and Chief Building Official within 24 hours of the occurrence, or before the close of business on the next business day to determine if the damage has compromised the integrity of the structure and individual designation. [Amd. Ord. 13-15 08/18/2015]
(d)
Supplemental requirements. All buildings and structures approved for relocation shall comply with the following: [Amd. Ord. 13-15 08/18/2015]
1.
The building to be relocated shall be secured from vandalism and potential weather damage before and after its move, in a manner as approved by the Chief Building Official. [Amd. Ord. 13-15 08/18/2015]
2.
All structures approved for relocation and awaiting issuance of a building permit for the new development on the originating site shall be maintained so as to remain in a condition similar to that which existed at the time of the application. [Amd. Ord. 13-15 08/18/2015]
3.
All structures to be relocated pursuant to this Section shall comply with the requirements of Section 7.10.11, "Moving of Building: Historic Structures". [Amd. Ord. 13-15 08/18/2015]
(7)
Visual compatibility standards. New construction and all improvements to both contributing and noncontributing buildings, structures and appurtenances thereto within a designated historic district or on an individually designated property shall be visually compatible. In addition to the Zoning District Regulations, the Historic Preservation Board shall apply the visual compatibility standards provided for in this Section with regard to height, width, mass, scale, façade, openings, rhythm, material, color, texture, roof shape, direction, and other criteria set forth elsewhere in Section 4.5.1. Visual compatibility for minor and major development as referenced in Section 4.5.1(E)(2) shall be determined by utilizing criteria contained in (a) through (m) below. Visual compatibility for all development on individually designated properties outside the district shall be determined by comparison to other structures within the site. [Amd. Ord. 30-08 09/16/08]; [Amd. Ord. 38-07 2/5/08]
(a)
Height. The height of proposed buildings or modifications shall be visually compatible in comparison or relation to the height of existing structures and buildings in a historic district for all major and minor development. For major development, visual compatibility with respect to the height of residential structures, as defined by 4.5.1(E)(2)(a), shall also be determined through application of the following: [Amd. Ord. 38-07 2/5/08]
1.
Building Height Plane (BHP): The building height plane technique sets back the overall height of a building from the front property line. [Amd. Ord. 38-07 2/5/08]
a.
The building height plane line is extended at an inclined angle from the intersection of the front yard property line and the average grade of the adjacent street along the lot frontage. The inclined angle shall be established at a two to one (2:1) ratio. See illustration below. [Amd. Ord. 38-07 2/5/08]
b.
A structure relocated to a historic district or to an individually designated historic site shall be exempt from this requirement. [Amd. Ord. 38-07 2/5/08]
2.
First floor maximum height. Single-story or first floor limits shall be established by: [Amd. Ord. 01-12 8/21/12]; [Amd. Ord. 38-07 2/5/08]
a.
Height from finished floor elevation to top of beam (tie or bond) shall not exceed 14 feet. [Amd. Ord. 38-07 2/5/08]
b.
Mean Roof Height shall not exceed 18 feet. [Amd. Ord. 38-07 2/5/08]
c.
If any portion of the building exceeds the dimensions described in a. and b. above, the building shall be considered a multi-story structure. [Amd. Ord. 01-12 8/21/12]; [Amd. Ord. 38-07 2/5/08]
d.
See illustration below: [Amd. Ord. 38-07 2/5/08]
e.
Sections a., b., and c., above may be waived by the Historic Preservation Board when appropriate, based on the architectural style of the building. [Amd. Ord. 01-12 8/21/12]; [Amd. Ord. 38-07 2/5/08]
3.
Upper Story Height(s). Height from finished floor elevation to finished floor elevation or top of beam (tie or bond) shall not exceed 12 feet. [Amd. Ord. 01-12 8/21/12]; [Amd. Ord. 38-07 2/5/08]
(b)
Front facade proportion. The front facade of each building or structure shall be visually compatible with and be in direct relationship to the width of the building and to the height of the front elevation of other existing structures and buildings within the subject historic district. [Amd. Ord. 38-07 2/5/08]
(c)
Proportion of openings (windows and doors). The openings of any building within a historic district shall be visually compatible with the openings exemplified by prevailing historic architectural styles of similar buildings within the district. The relationship of the width of windows and doors to the height of windows and doors among buildings shall be visually compatible within the subject historic district. [Amd. Ord. 38-07 2/5/08]
(d)
Rhythm of solids to voids. The relationship of solids to voids of a building or structure shall be visually compatible with existing historic buildings or structures within the subject historic district for all development, with particular attention paid to the front facades. [Amd. Ord. 38-07 2/5/08]
(e)
Rhythm of buildings on streets. The relationship of buildings to open space between them and adjoining buildings shall be visually compatible with the relationship between existing historic buildings or structures within the subject historic district. [Amd. Ord. 38-07 2/5/08]
(f)
Rhythm of entrance and/or porch projections. The relationship of entrances and porch projections to the sidewalks of a building shall be visually compatible with existing architectural styles of entrances and porch projections on existing historic buildings and structures within the subject historic district for all development. [Amd. Ord. 38-07 2/5/08]
(g)
Relationship of materials, texture, and color. The relationship of materials, texture, and color of the facade of a building and/or hardscaping shall be visually compatible with the predominant materials used in the historic buildings and structures within the subject historic district. [Amd. Ord. 38-07 2/5/08]
(h)
Roof shapes. The roof shape, including type and slope, of a building or structure shall be visually compatible with the roof shape of existing historic buildings or structures within the subject historic district. The roof shape shall be consistent with the architectural style of the building. [Amd. Ord. 38-07 2/5/08]
(i)
Walls of continuity. Walls, fences, evergreen landscape masses, or building facades, shall form cohesive walls of enclosure along a street to ensure visual compatibility with historic buildings or structures within the subject historic district and the structure to which it is visually related. [Amd. Ord. 38-07 2/5/08]
(j)
Scale of a building. The size of a building and the building mass in relation to open spaces, windows, door openings, balconies, porches, and lot size shall be visually compatible with the building size and mass of historic buildings and structures within a historic district for all development. To determine whether the scale of a building is appropriate, the following shall apply for major development only: [Amd. Ord. 38-07 2/5/08]
1.
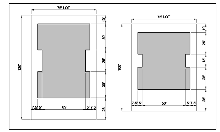
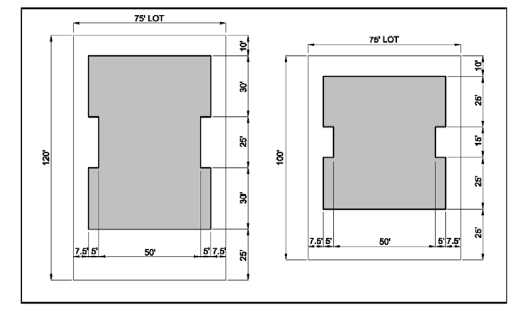
For buildings wider than 60 percent of the lot width, a portion of the front façade must be setback a minimum of seven additional feet from the front setback line: [Amd. Ord. 38-07 2/5/08]
a.
Lots 65 feet or less in width are exempt from this requirement. [Amd. Ord. 38-07 2/5/08]
b.
To calculate how much of the building width must comply with this provision, multiply the lot width by 40 percent and subtract the required minimum side setbacks (example: 100' lot width x 40% = 40' - 15' side yard setbacks = 25'). [Amd. Ord. 38-07 2/5/08]
c.
Any part or parts of the front façade may be used to meet this requirement. [Amd. Ord. 38-07 2/5/08]
d.
See illustration below: [Amd. Ord. 38-07 2/5/08]
e.
If the entire building is set back an additional seven (7) feet, no offset is required. [Amd. Ord. 38-07 2/5/08]
2.
For buildings deeper than 50 percent of the lot depth, a portion of each side façade, which is greater than one story high, must be setback a minimum of five additional feet from the side setback line: [Amd. Ord. 38-07 2/5/08]
a.
To calculate how much of the building depth must comply with this provision, multiply the lot depth by 50 percent and subtract the required minimum front and rear setbacks (example: 120' lot depth x 50% = 60' - 25' front yard setback - 10' rear setback = 25'). [Amd. Ord. 38-07 2/5/08]
b.
Any part or parts of the side façades may be used to meet this requirement. [Amd. Ord. 38-07 2/5/08]
c.
See illustration below: [Amd. Ord. 38-07 2/5/08]
d.
If the entire building is set back an additional five feet from the side, no offsets are required on that side. [Amd. Ord. 38-07 2/5/08]
3.
Porches may be placed in the offset portion of the front or side façades, provided they are completely open except for supporting columns and/or railings. [Amd. Ord. 38-07 2/5/08]
(k)
Directional expression of front elevation. A building shall be visually compatible with the buildings, structures, and sites within a historic district for all development with regard to its directional character, whether vertical or horizontal. [Amd. Ord. 38-07 2/5/08]
(l)
Architectural style. All major and minor development shall consist of only one architectural style per structure or property and not introduce elements definitive of another style. [Amd. Ord. 38-07 2/5/08]
(m)
Additions to individually designated properties and contributing structures in all historic districts. Visual compatibility shall be accomplished as follows: [Amd. Ord. 01-12 8/21/12]; [Amd. Ord. 38-07 2/5/08]
1.
Additions shall be located to the rear or least public side of a building and be as inconspicuous as possible. [Amd. Ord. 38-07 2/5/08]
2.
Additions or accessory structures shall not be located in front of the established front wall plane of a historic building. [Amd. Ord. 38-07 2/5/08]
3.
Characteristic features of the original building shall not be destroyed or obscured. [Amd. Ord. 38-07 2/5/08]
4.
Additions shall be designed and constructed so that the basic form and character of the historic building will remain intact if the addition is ever removed. [Amd. Ord. 38-07 2/5/08]
5.
Additions shall not introduce a new architectural style, mimic too closely the style of the existing building nor replicate the original design, but shall be coherent in design with the existing building. [Amd. Ord. 38-07 2/5/08]
6.
Additions shall be secondary and subordinate to the main mass of the historic building and shall not overwhelm the original building. [Amd. Ord. 38-07 2/5/08]
(8)
Visual compatibility incentives. In order to provide design flexibility for residential structures, as defined by LDR Section 4.5.1(E)(2)(a), that otherwise satisfy the Visual Compatibility Standards outlined in Section 4.5.1(E)(7), incentives for development shall include the following: [Amd. Ord. 38-07 2/5/08]
(a)
Open air spaces. The ratio of the Building Height Plane (BHP) can increase from two to one (2:1) to two to one and a half (2:1.5) for open air spaces limited to: first or second floor front porches (separation must be provided between floors), first or second floor side porches (separation must be provided between floors), balconies, and overlooks with open railings (see illustration below); and [Amd. Ord. 38-07 2/5/08]
(b)
Front elevation. Up to 25 percent of the front elevation(s) can extend above the Building Height Plane (BHP) to a maximum height of 35 feet, provided 25 percent or more of the front elevation(s) remains one story as defined by LDR Section 4.5.1(E)(7)(a)(2). The total width of extension shall not exceed 18 feet along the front elevation(s). See illustration below. [Amd. Ord. 38-07 2/5/08]
(9)
Maintenance Requirements for Historic Sites and Buildings; Penalties. (Ord. No. 12-18, § 2, 9-25-18)
(a)
Every owner of historic and archeological sites or owner of buildings, structures, improvements and appurtenances within historic districts shall keep in good repair and shall properly maintain both the exterior and site. The owner of a building or structure located within a historic district through the exercise of sufficient and reasonable care shall provide for the maintenance and upkeep of these sites and buildings to prevent destruction and decay as caused by either deterioration or other hazards. (Ord. No. 12-18, § 2, 9-25-18)
(b)
In addition to the general standards and guidelines set forth at Sub-paragraph 4.5.1.(E)(5) above, the owner shall preserve a historic structure against decay and deterioration through the correction of the following deficiencies: (Ord. No. 12-18, § 2, 9-25-18)
1.
Facades which may fall and injure the subject or adjoining structure or building, or members of the public. (Ord. No. 12-18, § 2, 9-25-18)
2.
Deteriorated or inadequate foundation, defective or deteriorated flooring or floor supports, deteriorated walls or other vertical structural supports. (Ord. No. 12-18, § 2, 9-25-18)
3.
Members of ceilings, roofs, ceiling and roof supports, or other horizontal members which sag, split or buckle due to defective material or deterioration. (Ord. No. 12-18, § 2, 9-25-18)
4.
Deteriorated or ineffective waterproofing of exterior walls, roofs, foundations, or floors, including broken windows or doors. (Ord. No. 12-18, § 2, 9-25-18)
5.
Presence of signs that would indicate rotting wood or termite infestation. (Ord. No. 12-18, § 2, 9-25-18)
6.
Any fault or defect in the structure or building which renders it structurally unsafe, insufficiently protected from weathering, or not properly watertight. (Ord. No. 12-18, § 2, 9-25-18)
(c)
In the sole discretion of the City, a violation of any of the provisions of sub-paragraph 4.5.1.(E)(9) may be penalized either as set forth in the City of Delray Beach Operating Guidelines Manual for the Neighborhood and Community Services Department, as may be amended from time to time, or additionally by imposing the penalties provided for in Section 37.36 of the City Code of Ordinances which have been authorized pursuant to state law at Chapter 162, F.S. (Ord. No. 12-18, § 2, 9-25-18)
(d)
Notwithstanding the penalties set forth at above sub-paragraph (c), and in addition to the penalties authorized by this section and the Code of Ordinances, a violation of these maintenance regulations which are determined by the City to be a either a repeat violation, or a serious threat to the public health, safety and welfare; or if the violation is irreparable or irreversible in nature, then in any of these circumstances, the owner may also be subject to the following provisions: (Ord. No. 12-18, § 2, 9-25-18)
1.
Following the determination by the City of violations under one or more of the circumstances set forth above, no permit will be issued for any alteration or new construction affecting such property for a period of five years, other than permits necessary to correct the violation. However, upon presentation of evidence satisfactory to the Historic Preservation Board that the violation has been corrected, any remaining portion of the five-year prohibition on issuance of a permit may be waived. Notwithstanding this waiver, no other provision or penalty of Sub-paragraph 4.5.1.(E)(9) may be waived by the Historic Preservation Board. (Ord. No. 12-18, § 2, 9-25-18)
2.
As a condition for any new land use approval, the owner may be required to rebuild, reconstruct, restore or replicate the structure or object on the property in accordance with applicable standards and development procedures as set forth in Section 4.5.1. (Ord. No. 12-18, § 2, 9-25-18)
3.
The ad valorem tax exemption provided for historic structures or properties under Section 4.5.1 and all historic preservation incentives will not apply to historically designated buildings, structures, landscape features, improvements or sites that are damaged, destroyed, or demolished through either action or inaction of the owner concerning maintenance regulation violations identified in sub-paragraph 4.5.1.(E)(9)(b) herein. (Ord. No. 12-18, § 2, 9-25-18)
(F)
Demolitions. Demolition of historic or archaeological sites, or buildings, structures, improvements and appurtenances within historic districts shall be regulated by the Historic Preservation Board and shall be subject to the following requirements: [Amd.-Ord. 14-15 7/7/2015]
(1)
No structure within a historic district or on a historic site shall be demolished before a Certificate of Appropriateness has been issued pursuant to Section 2.4.6(H). [Amd.-Ord. 14-15 7/7/2015]
(2)
The application for a Certificate of Appropriateness for demolition must be accompanied by an application for a Certificate of Appropriateness for alterations to the structure or the redevelopment of the property. [Amd.-Ord. 14-15 7/7/2015]
(3)
Demolition shall not occur until a building permit has been issued for the alterations or redevelopment as described in the applicable Certificate of Appropriateness. [Amd.-Ord. 14-15 7/7/2015]
(4)
All structures approved for demolition and awaiting issuance of a building permit for the alterations or redevelopment shall be maintained so as to remain in a condition similar to that which existed at time that the Certificate of Appropriateness for demolition was approved unless the Chief Building Official determines that an unsafe building condition exists in accordance with Section 4.5.3(G). [Amd.-Ord. 14-15 7/7/2015]
(5)
A Certificate of Appropriateness for demolition of 25 percent or more of contributing or individually designated structure shall be subject to the following additional requirements: [Amd.-Ord. 14-15 7/7/2015]
(a)
A demolition plan shall accompany the application for a Certificate of Appropriateness for demolition. The plan shall illustrate all portions of the existing structure that will be removed or altered. [Amd.-Ord. 14-15 7/7/2015]
(b)
The Certificate of Appropriateness for demolition and the Certificate of Appropriateness for alternation or redevelopment shall meet the "Additional Public Notice" requirements of LDR Section 2.4.2(B)(1)(j). [Amd.-Ord. 14-15 7/7/2015]
(6)
The Board upon a request for demolition by a property owner, shall consider the following guidelines in evaluating applications for a Certificate of Appropriateness for demolition of designated historic sites, historic interiors, or buildings, structures, or appurtenances within designated historic districts; [Amd.-Ord. 14-15 7/7/2015]
(a)
Whether the structure is of such interest or quality that it would reasonably fulfill criteria for designation for listing on the national register.
(b)
Whether the structure is of such design, craftsmanship, or material that it could be reproduced only with great difficulty or economically nonviable expense.
(c)
Whether the structure is one of the last remaining examples of its kind in the designated historic district within the city.
(d)
Whether retaining the structure would promote the general and value of a particular culture and heritage.
(e)
Whether there are approved plans for immediate reuse of the property if the proposed demolition is carried out, and what effect those plans will have on the historic district designation or the individual designation of the property. [Amd. Ord. 14-15 7/7/2015] [Amd.-Ord. 55-07 1/15/08]
(7)
No decision of the Board shall result in undue economic hardship for the property owner. The Board shall determine the existence of such hardship in accordance with the definition of undue economic hardship found in Section 4.5.1(H). [Amd.-Ord. 14-15 7/7/2015] [Amd. Ord. 30-08 09/16/08]
(8)
The Board's refusal to grant a Certificate of Appropriateness requested by a property owner for the purpose of demolition will be supported by a written statement describing the public interest that the Board seeks to preserve. [Amd.-Ord. 14-15 7/7/2015]
(9)
The Board may grant a certificate of appropriateness as requested by a property owner, for demolition which may provide for a delayed effective date. The effective date of the certificate will be determined by the Board based on the relative significance of the structure and the probable time required to arrange a possible alternative to demolition. The Board may delay the demolition of designated historic sites and contributing buildings within historic districts for up to six months while demolition of non-contributing buildings within the historic district may be delayed for up to three months. [Amd.-Ord. 14-15 7/7/2015]
(10)
Request for demolition justification statement. A justification statement shall accompany the application for a Certificate of Appropriateness for demolition of any contributing structure in a historic district or individually designated historic structure. The justification statement must include the following:[Amd.-Ord. 14-15 7/7/2015] [Amd. Ord. 55-07 1/15/08]
(a)
A certified report from a registered architect or engineer which provides documentation explaining that the building is structurally unsound and is damaged beyond the ability to repair it at a reasonable cost. The report must include photographs to substantiate the damage. [Amd. Ord. 55-07 1/15/08]
(b)
A certified report from an engineer, architect, general contractor, or other qualified professional which documents the projected cost of repairing the structure and returning it to a safe and habitable condition. [Amd. Ord. 55-07 1/15/08]
(c)
An appraisal of the property in its current condition, its value as vacant land and its potential value as a preserved and restored historic property. [Amd. Ord. 55-07 1/15/08]
(d)
Documentation that reasonable efforts have been made to find a suitable alternate location for the structure within the City of Delray Beach to which the contributing/individually designated historic structure could be safely relocated. [Amd. Ord. 55-07 1/15/08]
(e)
Documentation that the applicant or property owner has taken such steps as it deems necessary to preserve the structure requested for demolition including consultation with community groups, public agencies, and interested citizens, recommendations for acquisition of property by public or private bodies, or agencies and exploration of the possibility of moving one or more structures or other features. [Amd.-Ord. 14-15 7/7/2015]
(11)
Salvage and recordation of historic structures.
(a)
The property owner shall contact the Delray Beach Historical Society for the purpose of salvaging and preserving specified classes of building materials, architectural details and ornaments, fixtures, and the like for reuse in the restoration of the other historic properties. Confirmation of such efforts shall be provided in a written statement and submitted with the other demolition application prior to consideration by the Historic Preservation Board. [Amd. Ord. 14-15 7/7/2015]
(b)
The Board may, with the consent of the property owner, request that the Delray Beach Historical Society, or the owner, at the owner's expense, record the architectural details for archival purposes prior to demolition. [Amd. Ord. 14-15 7/7/2015]
i.
The recording may include, but shall not be limited to photographs, documents and scaled architectural drawings to include elevations and floor plans. [Amd. Ord. 14-15 7/7/2015]
ii.
One copy of the recording shall be submitted to the City's Planning and Zoning Department, and one copy shall be submitted to the Delray Beach Historical Society for archiving purposes. [Amd. Ord. 14-15 7/7/2015]
(G)
Unsafe buildings. In the event the Chief Building Official determines that any structure within a designated historic site or designated historic district is unsafe pursuant to the applicable Code of Ordinances, the Chief Building Official will provide the Board with a written statement, photographs, and statement from the property owner to be presented by the Chief Building Official at the next meeting. When appropriate and in accordance with applicable ordinances, the Chief Building Official will attempt to have the structure repaired rather than demolished, and will take into consideration any comments and recommendations by the Board. However, the provisions contained within subsection (A) of this section shall not apply to the Planning and Zoning Director's or designee's declaration that a building is unsafe, nor will the Chief Building Official be precluded from taking whatever steps, as may be required by applicable ordinances to protect the public health and safety of the community. The Board may also endeavor to negotiate with the owner and interested parties, provided such actions do not interfere with procedures in the applicable ordinances. [Amd.-Ord. 14-15 7/7/2015]
(H)
Undue economic hardship.[7] (Ord. No. 12-18, § 3, 9-25-18)
(1)
A property owner(s) experiencing undue economic hardship may file an application for a Certificate of Economic Hardship. A Certificate of Economic Hardship application must be submitted within 30 days of the issuance of a violation notice. The violation notice shall state the defects observed as well as the various incentive programs and preservation organizations that may be available for repair. (Ord. No. 12-18, § 3, 9-25-18)
(a)
The Historic Preservation Board shall schedule a public hearing within 60 days from the receipt of the application and shall provide notice of such hearing to the appropriate entities including the Special Magistrate and the Neighborhood and Community Services Department. A copy of the application for Certificate of Economic Hardship shall be provided to the Code Enforcement Board. (Ord. No. 12-18, § 3, 9-25-18)
(b)
During the period between receipt of the Certificate of Economic Hardship application and the hearing before the Board, it is the sole responsibility of the applicant to discuss the proposed violation(s) with various local preservation organizations to consider alternatives that will avoid an economic hardship and have the least adverse effect to the property and the districts. Proof of the applicant's efforts will be a factor considered by the Historic Preservation Board in determining whether to issue a Certificate of Economic Hardship. (Ord. No. 12-18, § 3, 9-25-18)
(2)
In all instances where there is a claim of undue economic hardship, the property owner shall submit with the application for Certificate of Economic Hardship, the following documentation: (Ord. No. 12-18, § 3, 9-25-18)
(a)
For All Property: (Ord. No. 12-18, § 3, 9-25-18)
1.
The amount paid for the property, the date of purchase, and the party from whom purchased; (Ord. No. 12-18, § 3, 9-25-18)
2.
The assessed value of the land and improvements thereon, according to the two most recent assessments; (Ord. No. 12-18, § 3, 9-25-18)
3.
Real estate taxes for the previous two years; (Ord. No. 12-18, § 3, 9-25-18)
4.
Annual debt service or mortgage payments, if any, for the previous two years; (Ord. No. 12-18, § 3, 9-25-18)
5.
All appraisals, if any, obtained within the previous two years by the owner or applicant in connection with the purchase, financing, or ownership of the property; (Ord. No. 12-18, § 3, 9-25-18)
6.
Any listing of the property for sale or rent, price asked, and offers received, if any; and (Ord. No. 12-18, § 3, 9-25-18)
7.
Any consideration by the owner as to profitable adaptive uses for the property, including but not limited to possible fair market rents for the property if it were rented or leased in its current condition. (Ord. No. 12-18, § 3, 9-25-18)
(b)
For Income Property (Actual or Potential): (Ord. No. 12-18, § 3, 9-25-18)
1.
The annual gross income from the property for the previous two years, if any; (Ord. No. 12-18, § 3, 9-25-18)
2.
The annual cash flow, if any, for the previous two years; and (Ord. No. 12-18, § 3, 9-25-18)
3.
The status of leases, rentals, or sales for the previous two years. (Ord. No. 12-18, § 3, 9-25-18)
(3)
An applicant may submit and the Board may require that an applicant furnish additional information relevant to the Board's determination of any alleged undue economic hardship. The Board may also require, in appropriate circumstances, that information be furnished under oath. (Ord. No. 12-18, § 3, 9-25-18)
(4)
In the event that any of the required information is not reasonably available to the property owner and cannot be obtained by the property owner, the property owner shall file statement of the information which cannot be obtained and the reasons why such information cannot be reasonably obtained. Where such unobtainable information concerns required financial information, the property owner will submit a statement describing estimates which will be as accurate as are feasible. (Ord. No. 12-18, § 3, 9-25-18)
Repealed Sections 4.5.1 (I), (J), (K), (L), (M), (N) and (O) in their entirety and enacted new sections 4.5.1 (I), (J), (K), and (L) [Ord. 01-12 8/21/12]
(I)
Local register of historic places. The following Historic Districts, Sites, and/or Buildings are hereby affirmed or established:
(1)
Nassau Park Historic District which consists of Lots 2-19 of Nassau Park, as recorded in Plat Book 16, page 67 of Palm Beach County, Florida; Lots 1-12 of Wheatley Subdivision, as recorded in Plat Book 16, page 98 of Palm Beach County, Florida; and Block E, Lot 4 and Block F, Lot 1 of John B. Reid's Village as recorded in Plat Book 21, page 95 of Palm Beach County, Florida. (Original designation by Ordinance 97-87 adopted on January 12, 1988)
(2)
Old School Square Historic District which consists of the south one-half of Block 57 and Blocks 58-62, Blocks 65-70, the west half of Blocks 74 and 75, and Lots 1-6 of Block 76, Town of Linton Plat, as recorded in Plat Book 1, Page 3, Palm Beach County Records. (Original designation by Ordinance 1-88 adopted on February 9, 1988).
(3)
Del-Ida Park Historic District which consists of Blocks 1 through 13, inclusive, along with Tracts A, B, and C DEL-IDA PARK, according to the Plat thereof on file in the Office of the Clerk of the Circuit Court in and for Palm Beach County, Florida recorded in Plat Book 9 at Page 62 (Original designation by Ordinance 9-88 adopted on March 22, 1988)
(4)
Sundy Feed Store, located on the South 85 feet of the North 153 feet of Lot 1, Block 84, Delray Beach, Palm Beach County. (Original designation by Ordinance 102-88, August 23, 1988, Note: In 1991, the structure was relocated outside of the City of Delray Beach.)
(5)
Historic Depot Square, located on a parcel of land lying in Section 18, Township 46 South, Range 43 East, City of Delray Beach (Original designation by Ordinance 119-88, October 11, 1988)
(6)
Marina Historic District which consists of Lots 1 to 11, inclusive, Lots 22 to 66, inclusive and Lots 83 to 93, inclusive, Palm Square, an unrecorded Plat located in Block 125 and Block 133 of the Town of Linton n/k/a Delray Beach (according to the plat thereof as recorded in Plat Book 1, Page 3 of the Public Records of Palm Beach County, Florida); Together with Lots A, D, E and F, Riker Square, according to the Plat thereof, recorded in Plat Book 18, Page 74 of the Public Records of Palm Beach County, Florida; Together with all of Anchorage Condominium, according to the Declaration of Condominium thereof, as recorded in Official Records Book 3060, Page 369, of the Public records of Palm Beach County, Florida, said Condominium being located within Lots B and C, Riker Square, according to the Plat thereof, recorded in Plat Book 18, Page 74 of the Public Records of Palm Beach County, Florida; Together with Lot 1 and Lots 5 to 12, inclusive, Re-subdivision of Block 118, Town of Linton n/k/a Delray Beach, according to the Plat thereof, recorded in Plat Book 2, Page 8 of the Public Records of Palm Beach County, Florida; Together with all of Sloan Hammock Condominium, according to the Declaration of Condominium thereof, as recorded in Official Records Book 9271, Page 258, of the Public records of Palm Beach County, Florida, said Condominium being located within Lots 2, 3 and 4, Re-subdivision of Block 118, Town of Linton n/k/a Delray Beach, according to the Plat thereof, recorded in Plat Book 2, Page 8 of the Public Records of Palm Beach County, Florida; Together with Lots 1 to 7, inclusive and Lots 13 to 24, inclusive, Re-subdivision of Block 126, Town of Linton n/k/a Delray Beach, according to the Plat thereof, recorded in Plat Book 11, Page 4 of the Public Records of Palm Beach County, Florida; Together with the South 50 feet of the North 176 feet of the West 165 feet of Block 126, Town of Linton n/k/a Delray Beach, according to the Plat thereof, recorded in Plat Book 1, Page 3 of the Public Records of Palm Beach County, Florida; Together with Lots 1 to 8, inclusive, and Tracts A and B, Marine Bay, according to the Plat thereof, recorded in Plat Book 89, Page 162 of the Public Records of Palm Beach County, Florida; Together with all of Block 134 lying West of Intracoastal Waterway, Town of Linton n/k/a Delray Beach, according to the Plat thereof, recorded in Plat Book 1, Page 3 of the Public Records of Palm Beach County, Florida; Together with Lots 13 to 24, inclusive (less South 15 feet SE 3rd Street and North 15 feet SE 2nd Street R/WS, Gracey-Byrd Subdivision, according to the Plat thereof, as recorded in Plat Book 10, Page 52 of the Public Records of Palm Beach County, Florida; Together with Lots A to E, inclusive, The Moorings, according to the Plat thereof, as recorded in Plat Book 20, Page 27 of the Public Records of Palm Beach County, Florida; Together with the North 1/2 of the South 1/2 of Block 127 (less the North 64 feet thereof, and the West 20 feet SE 7th Avenue R/W), Town of Linton n/k/a Delray Beach, according to the Plat thereof, recorded in Plat Book 1, Page 3 of the Public Records of Palm Beach County, Florida; together with Lots 1 and 2, Stone Hedge, according to the Plat thereof, as recorded in Plat Book 58, Page 176 of the Public Records of Palm Beach County, Florida; Together with Lots 23 and 24, and the East 8 feet of abandoned alley lying west of and adjacent thereto, Block 120, Blank-Nichols Subdivision, according to the Plat thereof, as recorded in Plat Book 13, Page 28 of the Public Records of Palm Beach County, Florida; Together with Lots 1 to 3, inclusive, and the North 20 feet of Lot 4, Block 128, Blank-Nichols Subdivision, according to the Plat thereof, as recorded in Plat Book 13, Page 28 of the Public Records of Palm Beach County, Florida. (Original designation by Ordinance 156-88 adopted on December 20, 1988; Amended by Ordinance 38-07, February 2, 2008; Amended by Ordinance 10-09, March 17, 2009)
(7)
The Koch House, 777 North Ocean Boulevard. Palm Beach Shore Acres, Lot 21, Block D, Delray Beach, Palm Beach County. (Original Designation by Ordinance 162-88, January 10, 1989.)
(8)
Site of School No. 4 Delray Colored, located on Block 28, Lot 2, N.W. 5th Avenue. (Original designation by Ordinance 16-89, April 11, 1989)
(9)
Greater Mount Olive Missionary Baptist Church, 40 N.W. 4th Avenue, located on Lot 7, Block 28, Delray Beach. (Original designation by Ordinance 17-89, April 11, 1989)
(10)
St. Paul African Methodist Episcopal Church, 119 N.W. 5th Avenue, located on Lot 5, Block 27, Delray Beach (Original designation by Ordinance 18-89, April 11, 1989)
(11)
The Free and Accepted Masons Of Delray Beach Lodge 275, 85 N.W. 5th Avenue, located on Lot 1, Block 28, Delray Beach (Original designation by Ordinance 19-89, April 11, 1989)
(12)
St. Matthew Episcopal Church, 404 S.W. 3rd Street, located on Lot 1, Block 32, Delray Beach (Original designation by Ordinance 20-89, April 11, 1989)
(13)
Historic Fontaine Fox House Properties, The Fontaine Fox House is located at 610 N. Ocean Boulevard; the complete boundary of the site consists of Lot 1 of Ocean Apple Estates; Lots 1 and 2 of Ocean Apple Estates, Plat III; the South 50 feet of Lots 1 and 2, Ocean Apple Estates, Plat II; and Lot 3, Ocean Apple Estates, Plat II. (Original Designation by Ordinance 70-89, October 24, 1989, as amended by Ordinance 43-11, December 6, 2011 and Ordinance 04-13, February 19, 2013).
(14)
The Scott House, 19 Andrews Avenue, located on the North 50 feet of the West 110 feet of the South 100 feet, less the West 10 feet of the Beach Lot 15, Subdivision of the Fractional East Half of Section 16, Township 46 South, Range 43 East, Delray Beach, Palm Beach County, Florida. (Original designation by Ordinance 17-90, May 22, 1990).
(15)
The Colony Hotel and the Colony Hotel North Annex, located on the South 12 feet of Lot 18, Alley South of Lot 18, East 25 feet of Lot 21 and Lots 22, 23, 24 and 25, Inclusive, Block 108. And Lots 5, 6 and 7, Less 5 foot Road R/W, Block 108, Town of Delray, with the designation pertaining to the buildings only and not the grounds. (Original designation by Ordinance 22-91, March 26, 1991)
(16)
Milton-Myers Post No. 65, the American Legion of the United States, 263 N.E. 5th Avenue, located on Lots 5, 14 and 15, Block 106, Delray Beach, formerly Town of Linton, Palm Beach County, Florida. (Original designation by Ordinance 68-94, October 18, 1994.)
(17)
Solomon D. Spady House, 170 N.W. 5th Avenue, located on Lots 5, 6 and the north 26.25 feet of Lot 7, Block 19, Delray Beach, formerly Town of Linton, Palm Beach County, Florida. (Original designation by Ordinance 08-95, February 7, 1995.)
(18)
The Susan Williams House, located at 154 N.W. 5th Avenue, Delray Beach, Florida; more particularly described as follows: south 12 feet of Lot 7 and Lot 8, Melvin S. Burd Subdivision, as recorded in Plat Book 11, Page 73, of the Public Records of Palm Beach County, Florida (154 N.W. 5th Avenue). (Original designation by Ordinance 09-95, February 7, 1995; amended by Ordinance 29-02, July 16, 2002.)
(19)
The Monterey House, 20 North Swinton Avenue, located on Lot 12, Block 60, Delray Beach, formerly Town of Linton, Palm Beach County, Florida. (Original designation by Ordinance 27-95, June 6, 1995.)
(20)
The Historic Bungalow, 24 North Swinton Avenue, located south 50 feet of Lot 11, Block 60, Delray Beach, formerly Town of Linton, Palm Beach County, Florida. (Original designation by Ordinance 28-95, June 6, 1995.)
(21)
The Blank House, 85 S.E. 6th Avenue, located on Lots 12, 13, and 14, Block 117, Delray Beach, formerly Town of Linton, Palm Beach County, Florida. (Original designation by Ordinance 26-95, June 6, 1995.)
(22)
The Sandoway House, 142 South Ocean Boulevard. Beach Lots Delray, the South 73 feet of the North 100 feet of Lot 24, less the West 355 feet, as recorded in Plat Book 1, Page 25, of the Public Records of Palm Beach County, Florida. (Original designation by Ordinance 57-96, December 3, 1996.)
(23)
West Settlers Historic District is bounded on the north by Martin Luther King, Jr. Boulevard (N.W. 2nd Street). The eastern boundary is as follows: the alley running north and south in Block 43; N.W. 3rd Avenue between N.W. 1st Street and the east-west alley of Block 36. The southern boundary is N.W. 1st Street between N.W. 3rd Avenue and the alley in Block 43; the east-west alley in Block 36 and Block 28 and the south property line of Lot 13, Block 20. The western boundary is the north-south alley and the eastern one-half of the block south of the alley of Block 19; the north-south alley in the north half of Block 20. (Original designation by Ordinance 6-97, February 18, 1997; Amended by Ordinance 38-07, February 5, 2008).
(24)
The Trinity Evangelical Lutheran Church Chapel, located on a portion of the Trinity Evangelical Lutheran Church property at 400 North Swinton Avenue, Delray Beach, Florida; more particularly described as the East ½ of Lot 12, Section 8-46-43, Delray Beach, Palm Beach County, Florida. The chapel is the only building in the church complex receiving an historic designation. The church complex is located at the northwest corner of Lake Ida Road and Swinton Avenue. (Original designation by Ordinance 26-97, July 1, 1997.)
(25)
The Turner House, located at 145 N.E. 6th Avenue, Delray Beach, Florida; more particularly described as the South 27.6 feet of Lot 5, less the West 5 feet SR R/W, Lots 6 and 7, less the West 5 feet SR R/W, of Block 115, as recorded in Plat Book 1 at Page 3 of the Public Records of Palm Beach County, Florida. (Original designation by Ordinance 46-97, November 18, 1997.)
(26)
The Price House, located at 1109 Sea Spray Avenue, Delray Beach, Florida; more particularly described as Lot 11, Sea Spray Estates, as recorded in Plat Book 21 at Page 15 of the Public Records of Palm Beach County, Florida. (Original designation by Ordinance 12-98, March 3, 1998.)
(27)
The Fellowship Hall of the First Presbyterian Church of Delray Beach, located at 36 Bronson Street, Delray Beach, Florida; more particularly described as Lots 16, 17, 18 and 19, Block 3, Ocean Park Subdivision, as recorded in Plat Book 5 at Page 15 of the Public Records of Palm Beach County, Florida. (Original designation by Ordinance 46-99, November 16, 1999.)
(28)
The Atlantic Avenue Bridge (State Structure #930864), located at East Atlantic Avenue and the Intracoastal Waterway in the City of Delray Beach, Palm Beach County, Florida. (Original designation by Ordinance 18-00, August 15, 2000)
(29)
The George Bush Boulevard Bridge, formerly known as the N.E. 8th Street Bridge, (State Structure #930026), located at George Bush Boulevard and the Intracoastal Waterway in the City of Delray Beach, Palm Beach County, Florida. (Original designation by Ordinance 19-00, August 15, 2000.)
(30)
The Water House, located at 916 and 918 Northeast 5th Street, Delray Beach, Florida; more particularly described as the West 84.82 feet of Lot 37, Las Palmas, Delray Beach, Florida, according to the Plat thereof recorded in the Office of the Clerk of the Circuit Court in and for Palm Beach County, Florida, in Plat Book 10 at Page 68. (Original designation by Ordinance 15-01, February 20, 2001.)
(31)
The O'Neal House, located at 910 N.E. 2nd Avenue, Delray Beach, Florida, more particularly described as follows: Lots 1, 2, 3, 28 and 29, Block 10, Dell Park, Delray Beach, Palm Beach County, Florida, according to the Plat thereof, recorded in Plat Book 8 at Page 56 of the Public Records of Palm Beach County, Florida. (Original designation by Ordinance 27-02, July 16, 2002.)
(32)
The Amelung House, located at 102 NE 12th Street, Delray Beach, Florida, more particularly described as follows: Lot 9, Block 6, Dell Park, according to the Plat recorded in Plat Book 8, Page 56, recorded in the Public Records of Palm Beach County, Florida; said land situate, lying and being in Palm Beach County, Florida. (Original designation by Ordinance 25-03, August 19, 2003.)
(33)
The Dewitt Estate, located at 1110 North Swinton Avenue, Delray Beach, Florida, more particularly described as the East 365.69 feet of Lot 8 (less the West 40.00 feet of the South 20.00 feet of said East 365.69 feet of Lot 8) Subdivision of South half of East half of Lot 8, Section 8, Township 46 South, Range 43 East, according to the Plat thereof, as recorded in Plat Book 16, Page 80, of the Public Records of Palm Beach County, Florida. (Original designation by Ordinance 71-04, January 4, 2005.)
(34)
The Hartman House, located at 302 N.E. 7th Avenue, Delray Beach, Florida, more particularly described as follows: Lots 13 and 14, Block 113, Highland Park according to the map or plat thereof as recorded in Plat Book 2, Page 79, of the Public Records of Palm Beach County, Florida. (Original designation by Ordinance 26-05, May 3, 2005.)
(35)
The Sewell C. Biggs House, located at 212 Seabreeze Avenue, Delray Beach, Florida, more particularly described as follows: Lot 21 and the West 35 feet of Lot 22, Delray Beach Esplanade, according to the plat thereof, as recorded in Plat Book 18, Page 39, Public Records of Palm Beach County, Florida. (Original designation by Ordinance 50-05, July 19, 2005.)
(36)
The Harvel House, located at 182 NW 5th Avenue, Delray Beach, Florida, more particularly described as follows: Lots 2 and south five feet of Lot 1, Melvin S. Burd Subdivision, according to the map or plat thereof as recorded in Plat Book 11, Page 73, of the Public Records of Palm Beach County, Florida. (Original designation by Ordinance 16-10, July 20, 2010.)
(37)
Adams Auto Dealership, located at 290 SE 6 th Avenue, Delray Beach, Florida, more particularly described as follows: Lots 30 and 31, Block 111, Town of Delray. (Original designation by Ordinance 24-12, August 21, 2012)
(38)
Waters-Wellenbrink Residence, located at 1108 Vista Del Mar Drive North, Delray Beach, Florida, more particularly described as follows: West 25.13 Feet of Lot 32 and Lot 33, Delray Beach Esplanade. (Original designation by Ordinance 29-12, October 16, 2012)
(39)
The Marina House, located at 170 Marine Way, Delray Beach, Florida, Lot 15, A Subdivision of Block 126, Delray, Florida, according to the Plat thereof, recorded in Plat Book 11, Page 4, of the Public Records of Palm Beach County, Florida. (Original designation by Ordinance 03-13. March 5, 2013.)
(40)
Two Fisher Lane, located at 2 Fisher Lane, Delray Beach, Florida, more particularly described as follows: Lots 40 and 41 and Part of 50 Feet abandoned Canal Street lying east of and adj to, Las Palmas Sub. (Original designation by Ordinance 18-13. September 3, 2013)
(41)
Ridley Temple Church of God In Christ, located at 102 SW 12th Avenue, Delray Beach, more particularly described as the Lots 1 and 13, Block 3, Atlantic Park Gardens, a subdivision of the City of Delray Beach, Florida as per Plat recorded in Plat Book 14, Page 56, of the Public Records of Palm Beach County, Florida together with Lot 14, Block 3, Atlantic Park Gardens, Delray, according to the Plat thereof on file in the office of the Clerk of the Circuit Court in and for Palm Beach County, Florida, recorded in Plat Book 14, Page 56. (Original designation by Ordinance 01-16, January 19, 2016).
(42)
The Clint Moore House, located at 1420 North Swinton Avenue, Delray Beach, more particularly described as the North Half of the Northeast Quarter of Lot 7, less the West 189.7 feet thereof and also less the East 33 feet thereof for road right-of-way of Swinton Avenue, of Section 8, Township 46 South, Range 43 East, Map Showing Subdivisions of Portions of Townships 45 and 46 South, Range 43 East, according to the map or plat thereof as recorded In Plat Book 1, Page 4, Public Records of Palm Beach County, Florida. Together with a sewer easement 6 feet in width on the South 6 feet or the South 100.24 feet of the West 189.7 feet of the North Half of the Northeast Quarter of Lot 7, of Section 8, Township 46 South, Range 43 East, less the West 25 feet for dedicated right-of-way as in O.R. Book 1443, Page 586, corrected in O.R. Book 1778, Page 268, Public Records of Palm Beach County, Florida. (Ord. No. 05-17, § 3, 4-4-17)
(43)
The Harden-Hart House, located at 516 North Swinton Avenue, Delray Beach, more particularly described as: The North 80 feet of the South 253 feet of the East 183 feet of the Southeast Quarter of Lot 11, Section 8, Township 46 South, Range 43 East, according to the Plat thereof on file in the Office of the Clerk of the Circuit Court in and for Palm Beach County, Florida, recorded in Plat Book 1, Page 4, less the East 33 feet thereof as conveyed to the City of Delray Beach as recorded in Deed Book 557, Page 269. (Ord. No. 15-19, § 3, 4-16-19)
(44)
The Wellbrock House, located at 20 and 22 North Swinton Avenue, Delray Beach, more particularly described as: Lot 12, LESS the South 4 feet thereof, Block 60, TOWN OF DELRAY, Florida as recorded in Plat Book 1, Page 3, of the Public Records of Palm Beach County, Florida. (Ord. No. 44-20, § 2, 9-10-20)
(45)
DOC'S, located at 10 North Swinton Avenue, Delray Beach, more particularly described as: Lot 16, Block 60, Map of the Town of Linton (now Delray Beach), according to the map or plat thereof as recorded in Plat Book 1, Page 3, Public Record of Palm Beach County, Florida, LESS and EXCEPT that portion conveyed to the State of Florida by Warranty Deed recorded in the O.R. Book 1607, page 471 and described as follows: The South 20 feet of Lot 16, Block 60, according to the Plat of Original Town of Linton, as recorded in Plat Book 1, Page 3, in the Public Records of Palm Beach County, Florida, in Section 17, Township 46 South, Range 43 east, and that part of said Lot 16 which is included in the external area formed by a 25 foot radius arc which is tangent to a line 20 feet north of and parallel to the South line of said lot 16 and tangent to the East line of said Lot 16. (Ord. No. 28-21, § 2, 12-6-22)
(J)
Tax exemption for historic properties. A tax exemption is available for improvements to qualifying contributing properties in a designated historic district or individually designated properties, as listed in Section 4.5.1(I). Qualifying properties shall be exempt from that portion of ad valorem taxation levied by the City of Delray Beach on 100 percent of the increase in assessed value resulting from any HPB approved renovation, restoration, rehabilitation, or other improvements of the qualifying property made on or after the effective date of the original passing of Ordinance 50-96 on November 19, 1996.
(1)
The exemption does not apply to:
(a)
Taxes levied for payment of bonds;
(b)
Taxes authorized by a vote of the electors pursuant to Section 9(b) or Section 12, Article 7 of the Florida Constitution; or
(c)
Personal property.
(2)
Duration of tax exemption. The exemption period shall be for ten years, unless a lesser term is set by the City Commission.
(a)
The term of the exemption shall be specified in the resolution approving the exemption and shall continue regardless of any changes in the authority of the City to authorize such exemption or change in ownership of the property.
(b)
To retain an exemption, the historic character of the property and the improvements which qualified the property for an exemption must be maintained in their historic state over the period for which the exemption was authorized.
(3)
Effective date of exemption. The effective date of the tax exemption shall be January 1 of the year following the year in which a historic preservation exemption covenant is recorded and a copy of the Final Application and resolution of the City Commission, as approved, have been transmitted to the Palm Beach County Property Appraiser.
(4)
Qualifying properties. Real property located within the City qualifies for the Historic Property Tax Exemption if, at the time the exemption is approved by the City Commission, the property:
(a)
is individually listed in the National Register of Historic Places pursuant to the National Historic Preservation Act of 1966, as amended; or,
(b)
is a contributing property within a district listed on the National Register of Historic Places or,
(c)
is a contributing property within a locally designated historic district or is individually designated and listed on the Local Register of Historic Places; and,
(d)
has been certified by the Historic Preservation Board as satisfying (a), (b), or (c).
(5)
Qualifying improvements. Improvements to a qualifying property for an exemption, the improvement must:
(a)
be consistent with the United States Secretary of the Interior's Standards for Rehabilitation, as amended; and
(b)
be a constructed and/or installed improvement as approved by the Historic Preservation Board and as established in rules adopted by the Department of State, Division of Historical Resources, FAC 1A-38, as amended which defines real property improvements as changes in the condition of real property brought about by the expenditure of labor and money for the restoration, renovation, or rehabilitation of such property. Improvements shall include, but are not limited to: modifications, repairs, or additions to the principal contributing building and its associated accessory structures (i.e. a garage, cabana, guest cottage, storage/utility structures, swimming pools), whether existing or new. The exemption does not apply to improvements made to non-contributing principal buildings, existing non-contributing accessory structures, or undesignated structures and/or properties; and,
(c)
be consistent with Section 4.5.1(E), "Development Standards", of the City's Land Development Regulations; and
(d)
include, as part of the overall project, visible improvements to the exterior of the structure.
(6)
Evaluation of property used for government or nonprofit purposes.
(a)
For purposes of the exemption under Section 196.1998, Florida Statutes, a property is being used for government or nonprofit purposes if the sole occupant of at least 65 percent of the useable space is an agency of the federal, state or a local government unit or a nonprofit organization certified by the Department of State under Section 617.0301, Florida Statutes.
(b)
For purposes of the exemption under Section 196.1998, Florida Statutes, a property is considered regularly and frequently open to the public if public access to the property is provided not less than 12 days a year on an equitably spaced basis, and at other times by appointment. Nothing herein shall prohibit the owner from charging a reasonable nondiscriminatory admission fee, comparable to fees charged at similar facilities in the area.
(7)
Application for exemption. Any property owner, or the authorized agent of the owner, that desires an ad valorem tax exemption for the improvement of a historic property must submit a Historic Property Tax Exemption Application to the Planning and Zoning Department upon completion of the qualifying improvements.
(a)
The application shall indicate the estimated cost of the total project, the estimated cost attributed solely to the historic structure, and project completion date as determined by the Certificate of Occupancy issued by the Building Department.
(b)
The Historic Property Tax Exemption Application shall be accompanied by a copy of the most recent tax bill from the Palm Beach County Property Appraiser for the property; a new property survey illustrating the improvements; a copy of the building permit application indicating estimated project cost; a copy of the Certificate of Occupancy/Final Inspection; and photographs illustrating the before and after of each improvement, including both the interior, exterior, and all new construction. The photographs shall be identified with a date and description indicating the impact of the improvement.
(c)
The application must be submitted within three months from the date of issuance of a Certificate of Occupancy.
(d)
The Historic Preservation Planner will inspect the completed work to verify such compliance prior to Historic Preservation Board review.
a.
If the Historic Preservation Board determines that the work is a qualifying improvement and is in compliance with the approved plans and the review standards contained in Section 4.5.1(E), the Board shall recommend that the City Commission grant the Historic Property Tax Exemption Application.
b.
Upon a recommendation of approval of a Historic Property Tax Exemption Application by the Historic Preservation Board, the application shall be placed by resolution on the agenda of the City Commission for approval. The resolution of the City Commission approving the application shall provide the name of the owner of the property, the property address and legal description, a recorded restrictive covenant in the official records of Palm Beach County as a condition of receiving the exemption, and the effective dates of the exemption, including the expiration date.
c.
If the Historic Preservation Board determines that the work as completed is either not consistent with the approved plans or is not in compliance with the review standards contained in Section 4.5.1(E), the applicant shall be advised that the request has been denied.
(8)
Historic preservation exemption covenant.
(a)
To qualify for an exemption, the applicant must sign and return the Historic Preservation Exemption Covenant. The covenant as established by the Department of State, Division of Historical Resources, shall be in a form approved by the City of Delray Beach City Attorney's Office and applicable for the term for which the exemption is granted and shall require the character of the property and qualifying improvements to be maintained during the period that the exemption is authorized.
(b)
On or before the effective date of the exemption, the owner of the property shall have the covenant recorded in the official records of Palm Beach County, Florida, and shall cause a certified copy of the recorded covenant to be delivered to the City's Historic Preservation Planner. Such covenant shall be binding on the current property owner, transferees, and their heirs, assigns and successors. A violation of the covenant shall result in the property owner being subject to the payment of the differences between the total amount of the taxes which would have been due in March of each of the previous years in which the covenant or agreement was in effect had the property not received the exemption and the total amount of taxes actually paid in those years, plus interest on the difference calculated as provided in Sec. 212.12(3), Florida Statutes.
(9)
Notice of approval to the property appraiser.
(a)
Upon the receipt of a certified copy of the recorded restrictive covenant by the Historic Preservation Planner, the Planner shall transmit a copy of the approved Final Application/Request for Review of Completed Work, the exemption covenant and the resolution of the City Commission approving the Final Application and authorizing the tax exemption to the Palm Beach County Property Appraiser.
(b)
The resolution approving an historic tax exemption must be filed with the Palm Beach County Property Appraiser on or before January 1 of the year in which an exemption is requested. Therefore, the Final Application/Request for Review of Completed Work must be submitted no later than November 1 of the year the work was completed in order to process the application for both the Historic Preservation Board and City Commission approvals. If the Final Application/Request for Review of Completed Work is not submitted by November 1 of the year the work was completed, the abatement will not take effect until the following year of the date of submittal.
(10)
Revocation Proceedings:[8] (Ord. No. 12-18, § 4, 9-25-18)
(a)
The Historic Preservation Board may initiate proceedings to revoke the ad valorem tax exemption provided herein, in the event the applicant, or subsequent owner or successors in interest to the property, fails to maintain the property according to the terms, conditions and standards as set forth at Sections 4.5.1(E)(5) and 4.5.1(E)(9) or violates the terms of the Historic Preservation Exemption Covenant. (Ord. No. 12-18, § 4, 9-25-18)
(b)
The Director of Development Services, or designee, shall provide notice to the current owner of record of the property and the Historic Preservation Board shall hold a revocation hearing and make a recommendation to the City Commission. (Ord. No. 12-18, § 4, 9-25-18)
(c)
The City Commission shall review the recommendation of the Historic Preservation Board and make a determination as to whether the tax exemption shall be revoked, a written resolution revoking the exemption and notice of penalties as provided in Paragraph 8 of the covenant will be provided to the owner, the Palm Beach County Property Appraiser, and filed in the official records of Palm Beach County. (Ord. No. 12-18, § 4, 9-25-18)
(d)
Upon receipt of the resolution revoking the tax exemption, the Palm Beach County Property Appraiser shall discontinue the tax exemption on the property as of January 1 of the year following receipt of the notice of revocation. (Ord. No. 12-18, § 4, 9-25-18)
(K)
Criteria for change of historic designation and/or classification.
(1)
A survey of all historic districts may be conducted by the City every five years. The survey report may recommend changes to the historic designation and/or classification of properties located within or immediately adjacent to a designated historic district.
(a)
Change of historic designation through removal from a historic district. If a survey report reveals that a part of a historic district that touches the edge of the boundary of the historic district at the time of the original designation of that district has had its historic integrity irreversibly compromised due to inappropriate development then the offending part of the district may be removed and the boundary lines of the historic district revised to reflect the removal in accordance with LDR Section 4.5.1(O).
1.
If a property owner within the part of the district seeking removal from the historic district desires to retain the historic designation for their property, then they may apply to individually designate their property pursuant to LDR Sections 4.5.1(B) and (C). If a property has received a tax exemption pursuant to LDR Section 4.5.1(M) as a contributing structure within a historic district but does not qualify for individual designation, then the part of the district seeking to be removed from the district which includes said property may not be removed until the tax exemption expires pursuant to LDR Section 4.5.1(M)(3).
(b)
Criteria for change of historic classification. If a City-initiated survey conducted within the last five years reveals that a property within a historic district should be reclassified as either contributing or non-contributing, then the classification may be revised in accordance with LDR Section 4.5.1(O) and shall be determined as follows:
1.
The survey report recommends the inclusion of an additional "Period of Significance", which would reclassify properties from non-contributing to contributing; or
2.
The survey report recommends that a property or properties have been so significantly altered that the changes are irreversible and have compromised the structures historic integrity of the structure, which would reclassify the structure from contributing to non-contributing.
(c)
Change of historic designation through expansion of a historic district. The boundaries of a historic district may be expanded based upon the recommendation of a survey report to include those properties recommended for inclusion within the district in accordance with LDR Section 4.5.1(O), or a new historic district may be created to include those identified properties in accordance with LDR Section 4.5.1(C).
(L)
Procedures for change of historic designation and/or classification.
(1)
Procedures for change of historic designation through removal from or expansion of a historic district. Applications shall be made to the Historic Preservation Board and may be initiated by written request of:
(a)
The Historic Preservation Board based upon the recommendations of a survey report completed within five years prior to the application; or
(b)
The City Commission based upon the recommendations of a survey report completed within five years prior to the application; or
(c)
Any owner(s) of a property to be removed or added based upon the recommendation of a City-initiated survey completed within 12 months or less prior to application. Applications submitted by property owners shall include:
1.
photographs and addresses of all properties that will be either removed from or added to the historic district; and
2.
signatures of at least 75 percent of the property owners that are located in the area that will be removed from or added to the historic district.
(d)
For the purposes of this section, completion date of the final survey report is determined by the date of acceptance by the Historic Preservation Board.
(e)
The Planning and Zoning Director or his/her designee shall conduct a preliminary evaluation of the information provided on each application to determine if it generally conforms with criteria in LDR Section 4.5.1(N)(1). The Planning and Zoning Director or his/her designee shall then prepare a report which shall contain the following:
1.
Proposed revised legal boundaries of the historic district;
2.
Analysis of the historic significance and character of the property(ies) to be removed from or added to the historic district; and
3.
A staff recommendation as to whether or not the properties should be removed due to irreversible loss of historic integrity as a result of inappropriate development within a historic district or part of a district or whether or not the additional properties should be added to the historic district due to an increase in contributing structures adjacent to the district.
(f)
A public hearing shall be scheduled before the Historic Preservation Board. Notice of said hearing shall be made to the owner(s) of all properties within the subject historic district and the owner(s) of all properties within 500 feet of the affected properties at least ten days prior to the hearing by regular mail. Additional notice shall be given in the same manner as provided for a rezoning action [see Section 2.4.2(B)(1)(b)] and by notice published in the newspaper at least ten days prior to the hearing, provided; however, posting pursuant to 2.4.2(B)(1)(b) is not required.
(2)
Procedures for change of historic classification. Applications to change the historic classification of a property or properties within a historic district shall be made to the Historic Preservation Board and may be initiated by written request of:
(a)
The Historic Preservation Board based upon the recommendations of a City-initiated survey report completed within five years prior to the application; or
(b)
The City Commission based upon the recommendations of a City-initiated survey report completed within five years prior to the application; or
(c)
Any owner(s) of a property to be reclassified based upon the recommendation of a City-initiated survey report completed within 12 months prior to the application. Applications submitted by property owners shall include:
1.
photographs and addresses of all properties that will be reclassified as contributing or noncontributing; and
2.
signatures of at least 75 percent of the owners whose properties are to be reclassified.
(d)
For the purposes of this section, completion date of the final survey report is determined by the date of acceptance by the Historic Preservation Board.
(e)
The Planning and Zoning Director or his/her designee shall conduct a preliminary evaluation of the information provided on each application to determine if it generally conforms with criteria in LDR Section 4.5.1(N)(1). The Planning and Zoning Director or his/her designee shall then prepare a report which shall contain the following:
i.
Analysis of the properties to be reclassified; and
ii.
A staff recommendation as to whether or not the properties should be reclassified due to either:
1.
loss of historic integrity as a result of irreversible alterations to a contributing property; or
2.
inclusion of an additional "Period of Significance" per the survey report recommendations.
(f)
A public hearing shall be scheduled before the Historic Preservation Board. Notice of said hearing shall be made to the owner(s) of all properties within the subject historic district at least ten days prior to the hearing by regular mail.
(3)
After conducting the public hearing, the Historic Preservation Board shall vote on the recommendation. A majority of the entire Board, present and voting, must act in the affirmative to approve the application. The decision of the Board, whether the application is approved or denied, shall then be transmitted to the City Commission. The City Commission shall consider the recommendation of the Historic Preservation Board through its standard ordinance adoption procedures, except that if any property owner within the subject historic district seeking a change of historic designation and/or classification objects, the City Commission approval shall require a super majority vote of four votes.
[Amd. Ord. 30-91, 3/26/91; Amd. Ord. 78-04, 1/18/05; Amd. Ord. 24-05, 4/19/05; Amd. Ord. 55-07, 1/15/08; Amd. Ord. 38-07, 2/5/08; Amd. Ord. 30-08, 09/16/08; Amd. Ord. 01-12, 8/21/12; Amd. Ord. 13-15, 08/18/2015; Amd. Ord. 14-15, 7/7/2015]
Editor's note— Ord. No. 12-18, § 3, adopted September 25, 2018, repealed and replaced subsection 4.5.1(H) in its entirety. Former subsection 4.5.1(H) pertained to similar subject matter and derived from Ord. 30-08, adopted September 16, 2008.
Editor's note— Ord. No. 12-18, § 4, adopted September 25, 2018, repealed and replaced subsection 4.5.1(J)(10) in its entirety. Former subsection 4.5.1(J)(10) pertained to similar subject matter and derived from Ord. 01-12, adopted August 21, 2012.
Any land use established within the City of Delray Beach must comply with the requirements of Chapter 99, Noise Control, of the Code of Ordinances.
Editor's note— Ord. No. 32-16, § 2, adopted Dec. 6, 2016, repealed § 4.5.3, which pertained to flood damage control districts and derived from Ord. 38-05, adopted June 21, 2005; Ord. 02-11, adopted Jan. 18, 2011; and Ord. 37-11, adopted Nov. 15, 2011. Similar provisions are now reflected in Ch. 10.
Editor's note— Ord. No. 37-17, § 2, adopted Nov. 7, 2017, repealed § 4.5.4, which pertained to coastal construction.
Palm Beach County is a Charter County and, as such, has the ability to enact ordinances which are effective within municipal boundaries. The manner in which such ordinances, which impact the land development process, are accommodated within the City of Delray Beach is set forth below.
(A)
Wetlands protection ordinance.
(1)
Reference. County Ordinance 90-5, adopted on January 23, 1990, applies within the municipal limits of Delray Beach.
(2)
Applicability. To lands defined in Section 3.v of the County Ordinance with exceptions per Section 4.01, therein.
(3)
Process. When this Ordinance is applicable to property which is subject to development review and approval, the applicant is responsible for compliance therewith. Compliance shall be initiated during the City's review process but satisfaction of Ordinance 90-5 may be made a condition of approval.
(B)
Wellfield protection ordinance.
(1)
Reference. The Palm Beach County Wellfield Protection Ordinance as initially adopted on March 07, 1988, and as amended thereafter, applies within the municipal limits of Delray Beach. [Amd. Ord. 4-93 1/26/93]
(2)
Applicability. To land contained within Wellfield Protection Zones 1, 2, 3, and 4 as depicted upon the Wellfield Protection Map Series as maintained by the Palm Beach County Department of Environmental Resources Management and upon which any of the following uses or activities are proposed: [Amd. Ord. 4-93 1/26/93]
(a)
Application for a building permit for nonresidential activity;
(b)
Application for a building permit for residential development of 25 or more units;
(c)
Application for a nonresidential development subject to site plan review or conditional use review and approval.
(3)
Process.
(a)
Development applications. When the above activities occur, the City shall require the applicant to file an "Affidavit of Notification" signed by the County Department of Environmental Resources Management as a part of submission materials. When site plan or conditional approval is required, the staff report provided to the approving body shall contain information as to the potential existence of regulated substances and the manner in which compliance with applicable provisions of the Ordinance will be achieved. [Amd. Ord. 4-93 1/26/93]
(b)
Occupational licenses. Prior to issuance of a new occupational license, certification from the Department of Environmental Resources Management as to conformance of the use to applicable requirements of the Wellfield Protection Ordinance must be provided to the City.
(4)
Additional restrictions. In addition to the provisions of the Countywide Wellfield Protection Ordinance, the following special regulations apply within the City of Delray Beach.
(a)
The installations of any private well within Zones 1, 2, and 3, as depicted on Palm Beach County's Department of Environmental Resources Management Wellfield Protection Map, for the City's Series 20 Wellfield is prohibited.
(b)
The replacement, reconditioning, or extension of the depth of any private well within Zones 1, 2, and 3, as depicted on Palm Beach County's Department of Environmental Resources Management Wellfield Protection Map, for the City's Series 20 Wellfield is prohibited. [Amd. Ord. 4-93 1/26/93
(C)
Traffic performance standards ordinance. [Reference Section 2.4.3(E) of these Land Development Regulations].
(D)
Coastal resource protection ordinance. [Reference Ordinance 34-90, of the City of Delray Beach, adopted on August 28, 1990].
[Amd. Ord. 73-95 12/5/95]
(A)
General. With the adoption of the City's Comprehensive Plan by Ordinance No. 82-89 on November 28, 1989, the City identified the West Atlantic Avenue Corridor as an area in need of redevelopment and revitalization. The West Atlantic Avenue Redevelopment Plan was prepared for the area and was adopted by the City Commission at its meeting of July 11, 1995. This section is created to implement the provisions of the adopted West Atlantic Redevelopment Plan and any updates subsequently adopted. All development within the West Atlantic Overlay District, as defined in Section (B) below, shall take place according to the provisions of the adopted plan. [Amd. Ord. 73-95 12/5/95] (Ord. No. 23-20, § 34, 9-10-20)
(B)
Defined. The West Atlantic Avenue Overlay District is hereby established as the area bounded by I-95 on the west, Swinton Avenue on the East, S.W. 1st Street on the south, and N.W. 1st Street on the north, and extending one block north of N.W. 1st Street along N.W. 5th Avenue to include Blocks 19 and 27, Town of Delray. The regulations established in Section 4.4.13(G)(2) shall apply to all CBD zoned parcels within the Overlay District. [Amd. Ord. 64-04 11/16/04]; [Amd. Ord. 73-95 12/5/95]
(C)
Reserved. [Amd. Ord. 64-04 11/16/04] (Ord. No. 09-19, § 3, 3-12-19)
(A)
Defined. The North Federal Highway Overlay District is hereby established as the area bounded by Dixie Highway on the west, the northern City limits on the north, North Federal Highway on the east, and N.E. 14th Street on the south. The regulations established in Section 4.4.9(D) and G(2) shall apply to all GC zoned parcels within the overlay district. [Amd. Ord. 53-96 11/19/96]
(A)
Defined. The Wallace Drive Overlay District is hereby established as the area bounded by SW 10 th Street on the north, Georgia Street on the south, SW 9 th Avenue on the east and Wallace Drive on the west. The regulations established in Section 4.4.26(F)(3) shall apply to all LI zoned parcels within the overlay district. [Amd. Ord. 1-04 2/3/04]
[Amd. Ord. 33-08 8/19/08]; [Amd. Ord. 66-04 12/6/04]
(A)
Defined. The Southwest Neighborhood Overlay District is the area zoned RM located between Interstate 95 and S.W. 1st Avenue from Atlantic Avenue to S.W. 2nd Street, except along SW 12th Avenue, where it extends south to SW 3rd Street. The applicable regulations set forth in Section 4.7, "Family/Workforce Housing" (in addition to applicable Land Development Regulations) shall apply to this district. [Amd. Ord. 06-14 4/1/14];
[Amd. Ord. 66-04 12/6/04]
(A)
Defined. The Southwest 10 th Street Overlay District is located between S.W. 10 th Street to the north and Reigle Avenue to the South and between Swinton Boulevard to the east and S.W. 2 nd Avenue, if it was extended to Reigle Avenue, to the west. The application regulations set forth in Section 4.7, "Family Workforce Housing" shall apply to the Southwest 10 th Street Overlay District in addition to other applicable Land Development Regulations.
[Amd. Ord. 66-04 12/6/04]
(A)
Defined. The Carver Estates Overlay District covers two areas shown on the map in Section 4.7.1c of the Land Development Regulations. The applicable regulations set forth in Section 4.7, "Family/Workforce Housing", shall apply to the Carver Estates Overlay District in addition to other applicable Land Development Regulations.
[Amd. Ord. 17-06 4/4/06]
(A)
Defined. The Infill Workforce Housing Area is located west of the Intracoastal Waterway and east of I-95 as shown on the map in Section 4.7.1(l) of the Land Development Regulations.
[Renumbered by Amd. Ord. 17-06 4/4/06]; [Amd. Ord. 68-04 1/4/05]
(A)
General. The Beach Property Owners Design Manual (Manual) was prepared for the single family and low density residential zoned properties, east of the Intracoastal Waterway, as defined below in subsections (B)(1) and (2). All development within the North Beach/Seagate and Ocean District Neighborhood Overlay Districts, shall be regulated according to the provisions of the Manual adopted herein and shall follow the standards for visual compatibility provided within the guidelines including regulations limiting height, width, mass, scale, materials, color, style, form, and square footage. The Beach Property Owners Design Manual, as amended, is adopted by reference as a part of this section. The Manual will be available to the public on the City of Delray Beach's website and in the Development Services Department. [Amd. Ord. 36-07 9/18/07]; [Amd. Ord. 68-04 1/4/05] (Ord. No. 08-19, § 2, 3-12-19)
(B)
Defined. [Amd. Ord. 68-04 1/4/05]
(1)
North Beach/Seagate Neighborhood Overlay District. The North Beach/Seagate Neighborhood Overlay District is hereby established as the area zoned Single Family Residential (R-1) Districts, including R-1-AA and R-1-AAA, located north of East Atlantic Avenue, south of George Bush Boulevard, east of the Intracoastal Waterway and west of North Ocean Boulevard (State Road A-1-A) together with the entire Seagate Neighborhood generally located south of Bucida Road, north of Lewis Cove, between the Intracoastal Waterway and south Ocean Boulevard (State Road A-1-A), less Lots 35 through 45, Block 5, of the plat of Seagate Extension. The regulations established in Section 4.4.3(E)(4), 4.4.3(F)(1), and 4.4.3(G)(1) shall apply to all parcels within the Overlay District, excluding those parcels located within a designated historic district or individually listed on the Local Register of Historic Places. [Amd. Ord. 68-04 1/4/05] (Ord. No. 08-19, § 2, 3-12-19)
(2)
Ocean Neighborhood Overlay District. The Ocean Neighborhood Overlay District is hereby established as the area located east of Ocean Boulevard (State Road A-1-A), zoned Single Family Residential (R-1) Districts, including R-1-A, R-1-AAA, and Low Density Residential (RL) District. The regulations established in Sections 4.4.3(E)(4), 4.4.3(F)(1), and 4.4.3(G)(1) shall apply to all parcels within the Overlay District, excluding those parcels located within a designated historic district or individually listed on the Local Register of Historic Places. [Amd. Ord. 68-04 1/4/05](Ord. No. 08-19, § 2, 3-12-19)
[Amd. Ord. 8-07 3/20/07]
(A)
Defined. The Four Corners Overlay District is hereby established as the area located at the four corners of the intersection of West Atlantic Avenue and Military Trail. The Overlay District includes both GC (General Commercial) and PC (Planned Commercial) zoned properties. All development within the overlay district is subject to special provisions included within the GC and PC zoning district regulations. [Amd. Ord. 8-07 3/20/07]
[Amd. Ord. 10-07 3/20/07]
(A)
Defined. The I-95/CSX Railroad Corridor Overlay District is located east of the CSX Railroad, west of I-95, south of the E-4 Canal, and north of the Historic Depot property, as shown on the map in Section 4.7.1(t) of the Land Development Regulations. The applicable regulations set forth in Section 4.7, "Family/Workforce Housing", shall apply to the I-95/CSX Railroad Corridor Overlay District in addition to other applicable Land Development Regulations. [Amd. Ord. 10-07 3/20/07]
[Amd. Ord. 24-08 6/17/08]
(A)
Defined. The Lake Ida Neighborhood Overlay District is hereby established as the area bounded by NW 22nd Street on the north, Swinton Avenue on the east, Lake Ida Road on the south, and Interstate 95 on the west for the properties that are zoned R-1-AA (Single Family Residential), R-1-AAA (Single Family Residential), and R-1-AAAB (Single Family residential). All development within the overlay district is subject to the special provisions included within the Single Family Residential (R-1) Districts.
[Amd. Ord. 38-09 8/18/09]
(A)
Defined. The Silver Terrace Courtyards Overlay District is located on the west side of South Federal Highway, approximately 320 feet south of SE 10th Street and north of the Plaza at Delray, as shown on the map in Section 4.7.1(v) of the Land Development Regulations. The applicable regulations set forth in Section 4.7, "Family/Workforce Housing", shall apply to the Silver Terrace Courtyards Overlay District in addition to other applicable Land Development Regulations.
[Amd. Ord. 09-11 4/5/11]
(A)
Defined. The Medical Arts Overlay District is hereby established to include the following area:
The North half (N ½) of the Northeast quarter (NE ¼) of Section 26, Township 46 South, Range 42 East, lying South of the Linton Boulevard road right-of-way, East of the LWDD E-3 Canal right-of way, and West of the Military Trail road right-of-way; together with Parcel 1, Delray Town Center, a Subdivision in Palm Beach County, Florida as per the Plat thereof recorded in Plat Book 65, Page 189, of the Public Records of Palm Beach County; together with Parcel A, Delray Outpatient Properties Plat, a Subdivision in Palm Beach County, Florida as per the Plat thereof recorded in Plat Book 99, Page 197, of the Public Records of Palm Beach County; together with the Northwest quarter (NW ¼) of the Northwest quarter (NW ¼), of Section 25, Township 46 South, Range 42 East, lying South of the Linton Boulevard road right-of-way, and East of the Military Trail road right-of-way, less the South half (S ½) of the Southeast quarter (SE ¼) of the Northwest Quarter (NW ¼) of the Northwest Quarter (NW ¼).
(B)
Map of overlay district.
[Amd. Ord. 09-11, 4/5/11]
[Amd. Ord. 21-12 8/7/12]
(A)
Defined. The Lintco Development Overlay District is hereby established to include the area on the north side of Linton Boulevard, west of SW 4th Avenue as shown on the Map in Section 4.5.19 (B), below:
(B)
Map of overlay district.
[Amd. Ord. 22-12 8/7/12]
(A)
Defined. The Waterford Overlay District is hereby established to include the following area:
Parcel "B" as set forth on the plat of Waterford Park, recorded in Plat Book 91 at Pages 119 and 120 of the public records of Palm Beach County, Florida.
(B)
Map of overlay district.
(A)
Defined. The Linton Commons Overlay District is hereby established as the area located at the southwest corner of Linton Boulevard and SW 4th Avenue and made up of Parcel A, Parcel B and Parcel C of the New Century Commons Plat (Plat Book 65. Page 21). The overlay district includes PC (Planned Commercial) zoned properties. All development within the overlay district is subject to special provisions included within the PC zoning district regulations. (Ord. No. 01-21, § 4, 1-19-21)
(A)
Defined. The Flo Delray Overlay District is hereby established as the 4.86-acre of land bounded by the Marketplace of Delray on the south and east, High Point of Delray West on the north and west, and the abutting Lake Worth Drainage District's L-33 on the north, being more specifically identified as with the West ½ of the Northwest ¼ of the Northeast ¼ of the Southeast ¼ of Section 14, Township 46 South, Range 42 east, Palm Beach County. The overlay district is zoned Medium Density Residential (RM). All development within the overlay district is subject to RM zoning district regulations. (Ord. No. 39-23, § 4, 12-5-23)
(Ord. No. 39-23, § 4, 12-5-23)
5. - OVERLAY AND ENVIRONMENTAL MANAGEMENT DISTRICTS
The Districts described in this Article do not establish uses or categorize uses. These Districts, however, do regulate allowable uses in a manner to mitigate adverse impacts of such uses upon the natural or man-made environment; or regulate development so as to mitigate potential dangers to the use of such developed land, or to otherwise implement policies and objectives of the Comprehensive Plan. Overlay and environmental management districts need not be shown on the Official Zoning Map.
[Amd. Ord. 01-12 8/21/12]
(A)
General. In recognition of findings as set forth in the original enactment of Ordinance 13-87, passed March 10, 1987, this Section is created in order to provide for the identification, preservation, protection, enhancement, perpetuation, and the use of districts, archeological sites, buildings, structures, improvements, and appurtenances that are reminders of past eras, events, and persons important in local, state, and national history; that provide significant examples of architectural styles of the past; that are unique and irreplaceable assets to the City and its neighborhoods; or that provide this and future generations with examples of the physical surroundings in which past generations lived; and other purposes.
(B)
Criteria for historic designation of districts, sites, and buildings. [Amd. Ord. 01-12 8/21/12]
(1)
To qualify as a historic site, historic district, historic structure, or historic interior, individual properties, structures, sites, or buildings, or groups of properties, structures, sites, or buildings must have significant character, interest, or value as part of the historical, cultural, aesthetic, and architectural heritage of the city, state, or nation. To qualify as a historic site, historic district, or historic structure, the property or properties must fulfill one or more of the criteria set forth in subsection (2) or (3) below; to qualify as a historic interior the interior must fulfill one or more of the criteria set forth in subsection (2) and meet the criteria set forth in subsections (3)(b) and (3)(d). [Amd. Ord. 38-07 2/5/08]
(2)
A building, structure, site, interior, or district will be deemed to have historical or cultural significance if it meets one or more of the following criteria:
(a)
Is associated in a significant way with the life or activities of a major person important in city, state, or national history (for example, the homestead of a local founding family);
(b)
Is the site of a historic event with significant effect upon the city, state, or nation;
(c)
Is associated in a significant way with a major historic event, whether cultural, economic, social, military, or political;
(d)
Exemplifies the historical, political, cultural, economic, or social trends of the community in history; or,
(e)
Is associated in a significant way with a past or continuing institution which has contributed substantially to the life of the city.
(3)
A building, structure, site, or district is deemed to have architectural or aesthetic significance if it fulfills one or more of the following criteria; except that to qualify as a historic interior, the interior must meet the criteria contained within subsections (3)(b) and (3)(d):
(a)
Portrays the environment in an era of history characterized by one or more distinctive architectural styles;
(b)
Embodies those distinguishing characteristics of an architectural style, period, or method of construction;
(c)
Is a historic or outstanding work of a prominent architect, designer, landscape architect, or builder; or
(d)
Contains elements of design, detail, material, or craftsmanship of outstanding quality or which represented, in its time, a significant innovation or adaptation to the South Florida environment.
(4)
A building, structure, site, interior, or district will be deemed to have historic significance if, in addition to or in the place of the previously mentioned criteria, the building, structure, site, or zone meets historic development standards as defined by and listed in the regulations of and criteria for the National Register of Historic Places, as prepared by the United States Department of the Interior under the Historic Preservation Act of 1966, as amended. A copy of these standards for the National Register is made part of this section as if fully set forth herein.
(C)
Procedures for historic designation. [Amd. Ord. 01-12 8/21/12]
(1)
Buildings, structures, archaeological sites, or districts which meet the criteria for historic sites or districts set forth in Section 4.5.1(B) may be designated as historic sites or districts, and listed on the Local Register of Historic Places. [Amd. Ord. 01-12 8/21/12]
(2)
Nominations for historical site or district designation shall be made to the Historic Preservation Board on an application form developed and approved by the Board.
(a)
Nominations for historic site status may be initiated by:
(1)
The Historic Preservation Board;
(2)
The City Commission; or
(3)
The property owner.
(b)
Nominations for historic district status may be initiated by:
(1)
The Historic Preservation Board;
(2)
The City Commission; or
(3)
The property owner(s). [Amd. Ord. 01-12 8/21/12]
(3)
A preliminary evaluation of the information provided on each nomination application shall be conducted by the Historic Preservation Planner to determine if it generally conforms with historic status criteria. A designation report shall then be prepared which contains the following: [Amd. Ord. 01-12 8/21/12]; [Amd. Ord. 30-91 3/26/91]
(a)
Proposed legal boundaries of the historic building, archaeological site, structure, or district; [Amd. Ord. 30-91 3/26/91]
(b)
Any proposed conditional zoning regulations designed to replace or complement existing zoning regulations with regard to, but not limited to use, floor area, density, height, setbacks, parking, and minimum lot size; [Amd. Ord. 30-91 3/26/91]
(c)
Analysis of the historic significance and character of the nominated property; and [Amd. Ord. 30-91 3/26/91]
(d)
Analysis of optional historic interiors for those buildings and structures with interior features of exceptional architectural, aesthetic, artistic, or historic significance. [Amd. Ord. 30-91 3/26/91]
(4)
A public hearing before the HPB shall be set, and notice of said hearing shall be made to the owner(s) of affected property at least ten days prior to the hearing by regular mail. Additional notice shall be given in the same manner as provided for a rezoning action [see Section 2.4.2(B)(1)(b)] and by notice published in the newspaper at least ten days prior to the hearing, provided, however, posting pursuant to 2.4.2(B)(1)(b) is not required. [Amd. Ord. 01-12 8/21/12]; [Amd. Ord. 78-04 1/18/05]; [Amd. Ord. 30-91 3/26/91]
DELETED (5) AND RENUMBERED [Amd. Ord. 24-05 4/19/05]
(5)
After conducting the public hearing, the Historic Preservation Board shall vote on the designation. A majority of the entire Board, present and voting, must act in the affirmative to approve the designation. The City Commission shall consider the recommendation of the Historic Preservation Board through its standard ordinance adoption procedures. [Amd. Ord. 01-12 8/21/12]; [Amd. Ord. 24-05 4/19/05]; [Amd. Ord. 30-91 3/26/91]
DELETED (6) AND RENUMBERED [Amd. Ord. 01-12 8/21/12]
(6)
The Board will issue an official "certificate of historic significance" to owner(s) of properties which are individually designated or classified as contributing to a historic district listed on the Local Register of Historic Places, as identified in Section 4.5.1(I). [Amd. Ord. 01-12 8/21/12]; [Amd. Ord. 24-05 4/19/05]; [Amd. Ord. 30-91 3/26/91]
(D)
Development review and approval procedures. Pursuant to Section 2.4.6(H), approval of a Certificate of Appropriateness (COA) must be obtained from the Historic Preservation Board prior to the exterior improvement of any property, building, or structure located within a Historic District or Individually Designated Site, as listed on the Local Register of Historic Places in Section 4.5.1(I). The COA process may occur concurrently with the processing of any additional reviews required for any such improvement of development. [Amd. Ord. 01-12 8/21/12]; [Amd. Ord. 30-08 09/16/08]
(E)
Development standards. All new development or exterior improvements on individually designated historic properties and/or properties located within historic districts shall, comply with the goals, objectives, and policies of the Comprehensive Plan, the Delray Beach Historic Preservation Design Guidelines, the Secretary of the Interior's Standards for Rehabilitation, and the Development Standards of this Section. Relief from Subsections (1) through (9) below may be granted by seeking a waiver approvable by the Historic Preservation Board, unless otherwise stated. [Amd. Ord. 01-12 8/21/12]; [Amd. Ord. 38-07 2/5/08]
(1)
Exterior architectural features. For the purpose of this Section, exterior architectural features shall include, but not be limited to the following: [Amd. Ord. 38-07 2/5/08]
(a)
The architectural style, scale, general design, and general arrangement of the structure's exterior;
(b)
The type and texture of building material; and
(c)
The type and style of all roofs, windows, doors, and signs.
(2)
Major and minor development. For the purposes of this section, major and minor development standards shall be applied as noted in the following table: [Amd. Ord. 01-12 8/21/12]; [Amd. Ord. 38-07 2/5/08]
Notes:
1. All development on individually designated properties in all zoning districts is Minor.
2. All development on properties in the OSSHAD district which are subject to CBD regulations pursuant to Section 4.4.24(B)(12) is Minor.
(a)
For the purposes of this section, "residential" includes single family, duplexes and multifamily in all historic districts and all development, regardless of use, in the Residential Office (RO) zoning district. [Amd. Ord. 38-07 2/5/08]
(b)
Major development shall be considered: [Amd. Ord. 38-07 2/5/08]
1.
New construction in all historic districts except CBD and CF zoned properties and properties zoned OSSHAD subject to Development Standards of Section 4.4.13(F); or, [Amd. Ord. 01-12 8/21/12]; [Amd. Ord. 38-07 2/5/08]
2.
The construction, reconstruction, or alteration of a building in excess of 25 percent of the existing floor area, and all appurtenances, except for properties zoned CBD, CF, or OSSHAD, subject to Development Standards of Section 4.4.13(F). For the purposes of this section, all limitations and regulations shall be reviewed in a cumulative manner from the date of passage of this ordinance in 2008; or, [Amd. Ord. 01-12 8/21/12]; [Amd. Ord. 38-07 2/5/08]
3.
The construction, reconstruction, or alteration of any part of the front façade of an existing contributing residential or non-residential structure and all appurtenances, except for properties zoned CBD, CF, or OSSHAD, subject to Development Standards of Section 4.4.13(F). [Amd. Ord. 01-12 8/21/12]; [Amd. Ord. 38-07 2/5/08]
(c)
Minor development shall be considered: [Amd. Ord. 38-07 2/5/08]
1.
New construction in all historic districts on property zoned CBD, CF, or OSSHAD subject to the Development Standards of Section 4.4.13(F); or, [Amd. Ord. 01-12 8/21/12]; [Amd. Ord. 38-07 2/5/08]
2.
Modifications to existing contributing and noncontributing structures in all historic districts on property zoned CBD, CF, or OSSHAD subject to the Development Standards of Section 4.4.13(F); or, [Amd. Ord. 01-12 8/21/12]; [Amd. Ord. 38-07 2/5/08]
3.
The construction, reconstruction, or alteration of any part of the front façade of an existing noncontributing residential or non-residential structures and all appurtenances; or, [Amd. Ord. 38-07 2/5/08]
4.
The construction, reconstruction, or alteration of less than 25 percent of the existing floor area of the building and all appurtenances. For purposes of this section, all limitations and regulations shall be reviewed in a cumulative manner from the date of passage of this ordinance in 2008. [Amd. Ord. 38-07 2/5/08]
5.
Any changes to Individually Historically Designated properties, whether already on site or newly designated, to help facilitate the move of a historic structure into a historic district. [Amd. Ord. 38-07 2/5/08]
(3)
Buildings, structures, appurtenances and parking. Buildings, structures, appurtenances and parking shall only be moved, reconstructed, altered, or maintained, in accordance with this chapter, in a manner that will preserve the historical and architectural character of the building, structure, site, or district: [Amd. Ord. 38-07 2/5/08]
DELETED (a) AND RELETTERED [Amd. Ord. 38-07 2/5/08]
(a)
Appurtenances. Appurtenances include, but are not limited to, stone walls, fences, light fixtures, steps, paving, sidewalks, signs, and accessory structures. [Amd. Ord. 38-07 2/5/08]
1.
Fences and walls. The provisions of Section 4.6.5 shall apply, except as modified below: [Amd. Ord. 01-12 8/21/12]; [Amd. Ord. 38-07 2/5/08]
a.
Chain-link fences are discouraged. When permitted, chain-link fences shall be clad in a green or black vinyl and only used in rear yards where they are not visible from a public right-of-way, even when screened by a hedge or other landscaping. [Amd. Ord. 01-12 8/21/12]; [Amd. Ord. 38-07 2/5/08]
b.
Swimming pool fences shall be designed in a manner that integrates the layout with the lot and structures without exhibiting a utilitarian or stand-alone appearance. [Amd. Ord. 38-07 2/5/08]
c.
Fences and walls over four feet shall not be allowed in front or side street setbacks. [Amd. Ord. 38-07 2/5/08]
d.
Non-historic and/or synthetic materials are discouraged, particularly when visible from a public right-of-way. [Amd. Ord. 01-12 8/21/12]
e.
Decorative landscape features, including but not limited to, arbors, pergolas, and trellises shall not exceed a height of eight feet within the front or side street setbacks. [Amd. Ord. 01-12 8/21/12]
2.
Garages and carports. [Amd. Ord. 38-07 2/5/08]
a.
Garages and carports are encouraged to be oriented so that they may be accessed from the side or rear and out of view from a public right-of-way. [Amd. Ord. 01-12 8/21/12]
b.
The orientation of garages and carports shall be consistent with the historic development pattern of structures of a similar architectural style within the district. [Amd. Ord. 01-12 8/21/12]
c.
The enclosure of carports is discouraged. When permitted, the enclosure of the carport should maintain the original details, associated with the carport, such as decorative posts, columns, roof planes, and other features. [Amd. Ord. 01-12 8/21/12]
d.
Garage doors shall be designed to be compatible with the architectural style of the principal structure and should include individual openings for vehicles rather than two car expanses of doors. Metal two car garage doors are discouraged; however, if options are limited and metal is proposed, the doors must include additional architectural detailing appropriate to the building. [Amd. Ord. 01-12 8/21/12]
(b)
Parking. [Amd. Ord. 38-07 2/5/08]
1.
Parking areas shall strive to contribute to the historic nature of the properties/districts in which they are located by use of creative design and landscape elements to buffer parking areas from adjacent historic structures. At a minimum, the following criteria shall be considered: [Amd. Ord. 01-12 8/21/12]; [Amd. Ord. 38-07 2/5/08]
a.
Locate parking adjacent to the building or in the rear. [Amd. Ord. 38-07 2/5/08]
b.
Screen parking that can be viewed from a public right-of-way with fencing, landscaping, or a combination of the two. [Amd. Ord. 01-12 8/21/12]; [Amd. Ord. 38-07 2/5/08]
c.
Utilize existing alleys to provide vehicular access to sites. [Amd. Ord. 38-07 2/5/08]
d.
Construct new curb cuts and street side driveways only in areas where they are appropriate or existed historically. [Amd. Ord. 38-07 2/5/08]
e.
Use appropriate materials for driveways. [Amd. Ord. 01-12 8/21/12]; [Amd. Ord. 38-07 2/5/08]
f.
Driveway type and design should convey the historic character of the district and the property. [Amd. Ord. 01-12 8/21/12]; [Amd. Ord. 38-07 2/5/08]
2.
Where feasible, and appropriate, alternative methods of meeting minimum parking standards contained in Sections 4.6.9(C)(8) and/or 4.6.9(E), as applicable, shall be explored to avoid excessive use of historic properties and/or properties located in historic districts for parking. [Amd. Ord. 01-12 8/21/12]; [Amd. Ord. 38-07 2/5/08]
3.
In accordance with Section 4.6.9(F)(1), the Historic Preservation Board may reduce the parking requirement when, upon receipt and special documentation, it is conclusively demonstrated that a reduced number of parking spaces will accommodate a specific use. [Amd. Ord. 01-12 8/21/12]
(4)
Alterations. In considering proposals for alterations to the exterior of historic buildings and structures and in applying development and preservation standards, the documented, original design of the building may be considered, among other factors. [Amd. Ord. 38-07 2/5/08]
(5)
Standards and guidelines. A historic site, building, structure, improvement, or appurtenance within a historic district shall only be altered, restored, preserved, repaired, relocated, demolished, or otherwise changed in accordance with the Secretary of the Interior's Standards for Rehabilitation, and the Delray Beach Historic Preservation Design Guidelines, as amended from time to time. [Amd. Ord. 38-07 2/5/08]
(6)
Relocation. [Amd. Ord. 30-08 09/16/08]; [Amd. Ord. 38-07 2/5/08]
(a)
Relocation of a structures in a historic district or on an individually designated site. Relocation of a contributing or non-contributing building or structure or an individually designated building or structure to another site shall not take place unless it is shown that preservation on their existing or original site would cause undue economic hardship to the property owner in accordance with definition and requirements of undue economic hardship found in Section 4.5.1(H) or a building permit has been issued. [Amd. Ord. 13-15 08/18/2015] [Amd. Ord. 01-12 8/21/12]
(b)
Relocation of contributing or individually designated structures.
1.
Criteria. When considering the relocation of a contributing structure from a historic district, or an individually designated structure from a site, the Board shall be guided by the following, as applicable: [Amd. Ord. 13-15 08/18/2015]
a.
Whether the structure will be relocated within the same historic district, into a new historic district, or outside of a historic district; [Amd. Ord. 13-15 08/18/2015]
b.
Whether the proposed relocation may have a detrimental effect on the structural soundness of the building or structure; [Amd. Ord. 13-15 08/18/2015]
c.
Whether the proposed relocation would have a negative or positive effect on other historic sites, buildings, or structures within the originating historic district, at the new site; [Amd. Ord. 13-15 08/18/2015]
d.
Whether the new surroundings of the relocated structure would be compatible with its architectural character; and, [Amd. Ord. 13-15 08/18/2015]
e.
Whether the proposed relocation is the only practicable means of saving the structure from demolition. [Amd. Ord. 13-15 08/18/2015]
2.
Relocation plan. When considering the relocation of a contributing or individually designated structure, the Board shall require a Relocation Plan that includes the following: [Amd. Ord. 13-15 08/18/2015]
a.
A detailed explanation of the relocation method including the type of machinery and equipment to be utilized; [Amd. Ord. 13-15 08/18/2015]
b.
A demolition plan illustrating any parts of the structure to be removed or modified to facilitate the relocation; [Amd. Ord. 13-15 08/18/2015]
c.
An illustration of locations where the building will be split, as applicable; [Amd. Ord. 13-15 08/18/2015]
d.
The name of the Florida Licensed Building Mover who will relocate the structure(s) and the following support materials, if available: [Amd. Ord. 13-15 08/18/2015]
i.
A description of the Florida Licensed Building Mover's past experience in moving historic buildings of a similar construction technique. [Amd. Ord. 13-15 08/18/2015]
ii.
Photographs of prior relocation projects completed by the Florida Licensed Building Mover taken before and after the relocation, if applicable. [Amd. Ord. 13-15 08/18/2015]
e.
A certified engineering report which includes: [Amd. Ord. 13-15 08/18/2015]
i.
A relocation feasibility study with an assessment of the building's structural condition to determine any damage that might occur during the move. [Amd. Ord. 13-15 08/18/2015]
ii.
Details and a description of the historic structure's construction type including technique and materials and current condition of materials. [Amd. Ord. 13-15 08/18/2015]
iii.
Identification of any areas of concern, and how these areas will be addressed prior to the relocation. [Amd. Ord. 13-15 08/18/2015]
DELETED 1. AND RENUMBERED [Amd. Ord. 01-12 8/21/12]
3.
Supplemental documentation. The following information shall be provided with the application for a Certificate of Appropriateness for relocation of a contributing or individually designated structure prior to Board consideration: [Amd. Ord. 13-15 08/18/2015]
a.
As built drawings of the building as it exists on its originating site before undertaking the move, particularly if the move will require substantial reconstruction, including but not limited to floor plans, elevations, and architectural details and profiles. [Amd. Ord. 13-15 08/18/2015]
b.
Photographs of the site and the interior and exterior of the building, including but not limited to all elevations and exterior details. [Amd. Ord. 13-15 08/18/2015]
c.
History of any code violations applied to the structure and property, along with an explanation of any pending violations or structure violations which have been issued within five years of the application request. [Amd. Ord. 13-15 08/18/2015]
4.
Concurrent new development review. Applications for a Certificate of Appropriateness for relocation shall be submitted concurrently with the application for a Certificate of Appropriateness for the new development on the originating site. [Amd. Ord. 13-15 08/18/2015]
5.
Site Maintenance. If the originating site is to remain vacant and construction of the new development will not commence for more than 90 days following the relocation, the lot shall be sodded and maintained in a manner consistent with other open space in the historic district. [Amd. Ord. 13-15 08/18/2015]
6.
Successful or unsuccessful relocation. The relocation of a historic structure is deemed successful when either no damage occurs during or as a result of the relocation or minimal damage occurs which is not deemed to compromise the integrity (structurally and architecturally) of the structure, and when the relocation is completed in accordance with the approved Certificate of Appropriateness, including the associated Relocation Plan. [Amd. Ord. 13-15 08/18/2015]
a.
If damage occurs during the relocation, then the property owner, applicant and/or Licensed Building Mover shall notify the Historic Preservation Planner and Chief Building Official within 24 hours of completion of the move to determine if the damage has compromised the integrity of the structure, thereby deeming the relocation as unsuccessful. [Amd. Ord. 13-15 08/18/2015]
b.
If a relocation is not successful, then the property owner and/or applicant shall notify the Historic Preservation Planner and Chief Building Official within 24 hours of the failed relocation, or before the close of business on the next business day. [Amd. Ord. 13-15 08/18/2015]
c.
Failure of any degree to successfully relocate the historic structure may result in the revocation of any site development relief (waivers, variances, internal adjustments, or other relief) associated with the relocation that has been granted by the Board or the City Commission, as required by the Planning and Zoning Director. [Amd. Ord. 13-15 08/18/2015]
d.
The applicant or property owner may submit a written request for the reconsideration of any previously approved site development relief associated with the unsuccessfully relocated structure in accordance with the following: [Amd. Ord. 13-15 08/18/2015]
i.
The reconsideration request shall be submitted to the Planning and Zoning Director within five business days of notification of the unsuccessful relocation. The reconsideration will be placed on the next available agenda of the recommending or approving body as appropriate. [Amd. Ord. 13-15 08/18/2015]
ii.
Requests for reconsideration shall include a statement regarding the relocation, documentation of the relocation, an explanation of the relocation failure, and how the relocation failed to meet the Relocation Plan of the approved Certificate of Appropriateness and the corrective actions to address issues caused by failed relocation. [Amd. Ord. 13-15 08/18/2015]
7.
Public notice. All applications for a Certificate of Appropriateness for the relocation of a contributing structure or an individually designated structure shall meet the "Additional Public Notice" requirements of LDR Section 2.4.2(B)(1)(j). [Amd. Ord. 13-15 08/18/2015]
(c)
Relocation of eligible historic structures into a historic district or on an individually designated site. An eligible historic structure is one which is not presently located within a historic district or is individually designated, and meets the criteria for Individually Designated for listing on the Local Register of Historic Places as outlined in LDR Section 4.5.1(B). [Amd. Ord. 13-15 08/18/2015]
1.
When considering the relocation of an eligible historic structure into a historic district, or onto an individually designated site, the Board shall be guided by the following, as applicable: [Amd. Ord. 13-15 08/18/2015]
a.
Whether the proposed relocation would have a positive effect on other historic sites, buildings, or structures within the historic district into which it will be relocated, or at the new site. [Amd. Ord. 13-15 08/18/2015]
b.
Whether the new surroundings of the relocated structure would be compatible with its architectural character. [Amd. Ord. 13-15 08/18/2015]
2.
When a relocation permit is issued for an eligible historic structure which will be relocated into a historic district, the structure shall be required to be individually designated to the new location for listing on the Local Register of Historic Places prior to receiving the final inspection of the relocation permit. [Amd. Ord. 13-15 08/18/2015]
3.
Relocation plan. When considering the relocation of an eligible historic structure, the Board shall require a Relocation Plan that includes the following: [Amd. Ord. 13-15 08/18/2015]
a.
A demolition plan illustrating any parts to be removed to facilitate the relocation. [Amd. Ord. 13-15 08/18/2015]
b.
An illustration of locations where the building will be split, as applicable. [Amd. Ord. 13-15 08/18/2015]
4.
Relocation review. Applications for the relocation of eligible historic structures, whether into a historic district or onto an individually designated site, may be administratively approved subject to compliance with the following: [Amd. Ord. 13-15 08/18/2015]
a.
That the request meets the applicable Development Standards of Section 4.3.4(K); [Amd. Ord. 13-15 08/18/2015]
b.
That the request meets the requirements of the zoning district to which it will be relocated; [Amd. Ord. 13-15 08/18/2015]
c.
That the request does not require any relief to accommodate the relocated structure; and, [Amd. Ord. 13-15 08/18/2015]
d.
That no alterations of the structure are to occur to the structure. Alterations to the structure and/or property require a separate application. [Amd. Ord. 13-15 08/18/2015]
e.
The relocation of eligible historic structures to non-conforming properties shall be considered in accordance with LDR Section 4.1.4(E). [Amd. Ord. 13-15 08/18/2015]
5.
Supplemental documentation. Photographs of the site and the interior and exterior of the building, including but not limited to all elevations and exterior details shall be provided with the application for a Certificate of Appropriateness for relocation of an eligible historic structure prior to Board consideration. [Amd. Ord. 13-15 08/18/2015]
6.
Successful relocation. The relocation of an eligible historic structure is deemed successful when either no damage occurs during or as a result of the relocation or minimal damage occurs which is not deemed to compromise the integrity (structurally and architecturally) of the structure, and when the relocation is completed in accordance with the approved Certificate of Appropriateness, including the associated Relocation Plan. If damage occurs during the relocation, then the property owner and/or applicant shall notify the Historic Preservation Planner and Chief Building Official within 24 hours of the occurrence, or before the close of business on the next business day to determine if the damage has compromised the integrity of the structure and individual designation. [Amd. Ord. 13-15 08/18/2015]
(d)
Supplemental requirements. All buildings and structures approved for relocation shall comply with the following: [Amd. Ord. 13-15 08/18/2015]
1.
The building to be relocated shall be secured from vandalism and potential weather damage before and after its move, in a manner as approved by the Chief Building Official. [Amd. Ord. 13-15 08/18/2015]
2.
All structures approved for relocation and awaiting issuance of a building permit for the new development on the originating site shall be maintained so as to remain in a condition similar to that which existed at the time of the application. [Amd. Ord. 13-15 08/18/2015]
3.
All structures to be relocated pursuant to this Section shall comply with the requirements of Section 7.10.11, "Moving of Building: Historic Structures". [Amd. Ord. 13-15 08/18/2015]
(7)
Visual compatibility standards. New construction and all improvements to both contributing and noncontributing buildings, structures and appurtenances thereto within a designated historic district or on an individually designated property shall be visually compatible. In addition to the Zoning District Regulations, the Historic Preservation Board shall apply the visual compatibility standards provided for in this Section with regard to height, width, mass, scale, façade, openings, rhythm, material, color, texture, roof shape, direction, and other criteria set forth elsewhere in Section 4.5.1. Visual compatibility for minor and major development as referenced in Section 4.5.1(E)(2) shall be determined by utilizing criteria contained in (a) through (m) below. Visual compatibility for all development on individually designated properties outside the district shall be determined by comparison to other structures within the site. [Amd. Ord. 30-08 09/16/08]; [Amd. Ord. 38-07 2/5/08]
(a)
Height. The height of proposed buildings or modifications shall be visually compatible in comparison or relation to the height of existing structures and buildings in a historic district for all major and minor development. For major development, visual compatibility with respect to the height of residential structures, as defined by 4.5.1(E)(2)(a), shall also be determined through application of the following: [Amd. Ord. 38-07 2/5/08]
1.
Building Height Plane (BHP): The building height plane technique sets back the overall height of a building from the front property line. [Amd. Ord. 38-07 2/5/08]
a.
The building height plane line is extended at an inclined angle from the intersection of the front yard property line and the average grade of the adjacent street along the lot frontage. The inclined angle shall be established at a two to one (2:1) ratio. See illustration below. [Amd. Ord. 38-07 2/5/08]
b.
A structure relocated to a historic district or to an individually designated historic site shall be exempt from this requirement. [Amd. Ord. 38-07 2/5/08]
2.
First floor maximum height. Single-story or first floor limits shall be established by: [Amd. Ord. 01-12 8/21/12]; [Amd. Ord. 38-07 2/5/08]
a.
Height from finished floor elevation to top of beam (tie or bond) shall not exceed 14 feet. [Amd. Ord. 38-07 2/5/08]
b.
Mean Roof Height shall not exceed 18 feet. [Amd. Ord. 38-07 2/5/08]
c.
If any portion of the building exceeds the dimensions described in a. and b. above, the building shall be considered a multi-story structure. [Amd. Ord. 01-12 8/21/12]; [Amd. Ord. 38-07 2/5/08]
d.
See illustration below: [Amd. Ord. 38-07 2/5/08]
e.
Sections a., b., and c., above may be waived by the Historic Preservation Board when appropriate, based on the architectural style of the building. [Amd. Ord. 01-12 8/21/12]; [Amd. Ord. 38-07 2/5/08]
3.
Upper Story Height(s). Height from finished floor elevation to finished floor elevation or top of beam (tie or bond) shall not exceed 12 feet. [Amd. Ord. 01-12 8/21/12]; [Amd. Ord. 38-07 2/5/08]
(b)
Front facade proportion. The front facade of each building or structure shall be visually compatible with and be in direct relationship to the width of the building and to the height of the front elevation of other existing structures and buildings within the subject historic district. [Amd. Ord. 38-07 2/5/08]
(c)
Proportion of openings (windows and doors). The openings of any building within a historic district shall be visually compatible with the openings exemplified by prevailing historic architectural styles of similar buildings within the district. The relationship of the width of windows and doors to the height of windows and doors among buildings shall be visually compatible within the subject historic district. [Amd. Ord. 38-07 2/5/08]
(d)
Rhythm of solids to voids. The relationship of solids to voids of a building or structure shall be visually compatible with existing historic buildings or structures within the subject historic district for all development, with particular attention paid to the front facades. [Amd. Ord. 38-07 2/5/08]
(e)
Rhythm of buildings on streets. The relationship of buildings to open space between them and adjoining buildings shall be visually compatible with the relationship between existing historic buildings or structures within the subject historic district. [Amd. Ord. 38-07 2/5/08]
(f)
Rhythm of entrance and/or porch projections. The relationship of entrances and porch projections to the sidewalks of a building shall be visually compatible with existing architectural styles of entrances and porch projections on existing historic buildings and structures within the subject historic district for all development. [Amd. Ord. 38-07 2/5/08]
(g)
Relationship of materials, texture, and color. The relationship of materials, texture, and color of the facade of a building and/or hardscaping shall be visually compatible with the predominant materials used in the historic buildings and structures within the subject historic district. [Amd. Ord. 38-07 2/5/08]
(h)
Roof shapes. The roof shape, including type and slope, of a building or structure shall be visually compatible with the roof shape of existing historic buildings or structures within the subject historic district. The roof shape shall be consistent with the architectural style of the building. [Amd. Ord. 38-07 2/5/08]
(i)
Walls of continuity. Walls, fences, evergreen landscape masses, or building facades, shall form cohesive walls of enclosure along a street to ensure visual compatibility with historic buildings or structures within the subject historic district and the structure to which it is visually related. [Amd. Ord. 38-07 2/5/08]
(j)
Scale of a building. The size of a building and the building mass in relation to open spaces, windows, door openings, balconies, porches, and lot size shall be visually compatible with the building size and mass of historic buildings and structures within a historic district for all development. To determine whether the scale of a building is appropriate, the following shall apply for major development only: [Amd. Ord. 38-07 2/5/08]
1.
For buildings wider than 60 percent of the lot width, a portion of the front façade must be setback a minimum of seven additional feet from the front setback line: [Amd. Ord. 38-07 2/5/08]
a.
Lots 65 feet or less in width are exempt from this requirement. [Amd. Ord. 38-07 2/5/08]
b.
To calculate how much of the building width must comply with this provision, multiply the lot width by 40 percent and subtract the required minimum side setbacks (example: 100' lot width x 40% = 40' - 15' side yard setbacks = 25'). [Amd. Ord. 38-07 2/5/08]
c.
Any part or parts of the front façade may be used to meet this requirement. [Amd. Ord. 38-07 2/5/08]
d.
See illustration below: [Amd. Ord. 38-07 2/5/08]
e.
If the entire building is set back an additional seven (7) feet, no offset is required. [Amd. Ord. 38-07 2/5/08]
2.
For buildings deeper than 50 percent of the lot depth, a portion of each side façade, which is greater than one story high, must be setback a minimum of five additional feet from the side setback line: [Amd. Ord. 38-07 2/5/08]
a.
To calculate how much of the building depth must comply with this provision, multiply the lot depth by 50 percent and subtract the required minimum front and rear setbacks (example: 120' lot depth x 50% = 60' - 25' front yard setback - 10' rear setback = 25'). [Amd. Ord. 38-07 2/5/08]
b.
Any part or parts of the side façades may be used to meet this requirement. [Amd. Ord. 38-07 2/5/08]
c.
See illustration below: [Amd. Ord. 38-07 2/5/08]
d.
If the entire building is set back an additional five feet from the side, no offsets are required on that side. [Amd. Ord. 38-07 2/5/08]
3.
Porches may be placed in the offset portion of the front or side façades, provided they are completely open except for supporting columns and/or railings. [Amd. Ord. 38-07 2/5/08]
(k)
Directional expression of front elevation. A building shall be visually compatible with the buildings, structures, and sites within a historic district for all development with regard to its directional character, whether vertical or horizontal. [Amd. Ord. 38-07 2/5/08]
(l)
Architectural style. All major and minor development shall consist of only one architectural style per structure or property and not introduce elements definitive of another style. [Amd. Ord. 38-07 2/5/08]
(m)
Additions to individually designated properties and contributing structures in all historic districts. Visual compatibility shall be accomplished as follows: [Amd. Ord. 01-12 8/21/12]; [Amd. Ord. 38-07 2/5/08]
1.
Additions shall be located to the rear or least public side of a building and be as inconspicuous as possible. [Amd. Ord. 38-07 2/5/08]
2.
Additions or accessory structures shall not be located in front of the established front wall plane of a historic building. [Amd. Ord. 38-07 2/5/08]
3.
Characteristic features of the original building shall not be destroyed or obscured. [Amd. Ord. 38-07 2/5/08]
4.
Additions shall be designed and constructed so that the basic form and character of the historic building will remain intact if the addition is ever removed. [Amd. Ord. 38-07 2/5/08]
5.
Additions shall not introduce a new architectural style, mimic too closely the style of the existing building nor replicate the original design, but shall be coherent in design with the existing building. [Amd. Ord. 38-07 2/5/08]
6.
Additions shall be secondary and subordinate to the main mass of the historic building and shall not overwhelm the original building. [Amd. Ord. 38-07 2/5/08]
(8)
Visual compatibility incentives. In order to provide design flexibility for residential structures, as defined by LDR Section 4.5.1(E)(2)(a), that otherwise satisfy the Visual Compatibility Standards outlined in Section 4.5.1(E)(7), incentives for development shall include the following: [Amd. Ord. 38-07 2/5/08]
(a)
Open air spaces. The ratio of the Building Height Plane (BHP) can increase from two to one (2:1) to two to one and a half (2:1.5) for open air spaces limited to: first or second floor front porches (separation must be provided between floors), first or second floor side porches (separation must be provided between floors), balconies, and overlooks with open railings (see illustration below); and [Amd. Ord. 38-07 2/5/08]
(b)
Front elevation. Up to 25 percent of the front elevation(s) can extend above the Building Height Plane (BHP) to a maximum height of 35 feet, provided 25 percent or more of the front elevation(s) remains one story as defined by LDR Section 4.5.1(E)(7)(a)(2). The total width of extension shall not exceed 18 feet along the front elevation(s). See illustration below. [Amd. Ord. 38-07 2/5/08]
(9)
Maintenance Requirements for Historic Sites and Buildings; Penalties. (Ord. No. 12-18, § 2, 9-25-18)
(a)
Every owner of historic and archeological sites or owner of buildings, structures, improvements and appurtenances within historic districts shall keep in good repair and shall properly maintain both the exterior and site. The owner of a building or structure located within a historic district through the exercise of sufficient and reasonable care shall provide for the maintenance and upkeep of these sites and buildings to prevent destruction and decay as caused by either deterioration or other hazards. (Ord. No. 12-18, § 2, 9-25-18)
(b)
In addition to the general standards and guidelines set forth at Sub-paragraph 4.5.1.(E)(5) above, the owner shall preserve a historic structure against decay and deterioration through the correction of the following deficiencies: (Ord. No. 12-18, § 2, 9-25-18)
1.
Facades which may fall and injure the subject or adjoining structure or building, or members of the public. (Ord. No. 12-18, § 2, 9-25-18)
2.
Deteriorated or inadequate foundation, defective or deteriorated flooring or floor supports, deteriorated walls or other vertical structural supports. (Ord. No. 12-18, § 2, 9-25-18)
3.
Members of ceilings, roofs, ceiling and roof supports, or other horizontal members which sag, split or buckle due to defective material or deterioration. (Ord. No. 12-18, § 2, 9-25-18)
4.
Deteriorated or ineffective waterproofing of exterior walls, roofs, foundations, or floors, including broken windows or doors. (Ord. No. 12-18, § 2, 9-25-18)
5.
Presence of signs that would indicate rotting wood or termite infestation. (Ord. No. 12-18, § 2, 9-25-18)
6.
Any fault or defect in the structure or building which renders it structurally unsafe, insufficiently protected from weathering, or not properly watertight. (Ord. No. 12-18, § 2, 9-25-18)
(c)
In the sole discretion of the City, a violation of any of the provisions of sub-paragraph 4.5.1.(E)(9) may be penalized either as set forth in the City of Delray Beach Operating Guidelines Manual for the Neighborhood and Community Services Department, as may be amended from time to time, or additionally by imposing the penalties provided for in Section 37.36 of the City Code of Ordinances which have been authorized pursuant to state law at Chapter 162, F.S. (Ord. No. 12-18, § 2, 9-25-18)
(d)
Notwithstanding the penalties set forth at above sub-paragraph (c), and in addition to the penalties authorized by this section and the Code of Ordinances, a violation of these maintenance regulations which are determined by the City to be a either a repeat violation, or a serious threat to the public health, safety and welfare; or if the violation is irreparable or irreversible in nature, then in any of these circumstances, the owner may also be subject to the following provisions: (Ord. No. 12-18, § 2, 9-25-18)
1.
Following the determination by the City of violations under one or more of the circumstances set forth above, no permit will be issued for any alteration or new construction affecting such property for a period of five years, other than permits necessary to correct the violation. However, upon presentation of evidence satisfactory to the Historic Preservation Board that the violation has been corrected, any remaining portion of the five-year prohibition on issuance of a permit may be waived. Notwithstanding this waiver, no other provision or penalty of Sub-paragraph 4.5.1.(E)(9) may be waived by the Historic Preservation Board. (Ord. No. 12-18, § 2, 9-25-18)
2.
As a condition for any new land use approval, the owner may be required to rebuild, reconstruct, restore or replicate the structure or object on the property in accordance with applicable standards and development procedures as set forth in Section 4.5.1. (Ord. No. 12-18, § 2, 9-25-18)
3.
The ad valorem tax exemption provided for historic structures or properties under Section 4.5.1 and all historic preservation incentives will not apply to historically designated buildings, structures, landscape features, improvements or sites that are damaged, destroyed, or demolished through either action or inaction of the owner concerning maintenance regulation violations identified in sub-paragraph 4.5.1.(E)(9)(b) herein. (Ord. No. 12-18, § 2, 9-25-18)
(F)
Demolitions. Demolition of historic or archaeological sites, or buildings, structures, improvements and appurtenances within historic districts shall be regulated by the Historic Preservation Board and shall be subject to the following requirements: [Amd.-Ord. 14-15 7/7/2015]
(1)
No structure within a historic district or on a historic site shall be demolished before a Certificate of Appropriateness has been issued pursuant to Section 2.4.6(H). [Amd.-Ord. 14-15 7/7/2015]
(2)
The application for a Certificate of Appropriateness for demolition must be accompanied by an application for a Certificate of Appropriateness for alterations to the structure or the redevelopment of the property. [Amd.-Ord. 14-15 7/7/2015]
(3)
Demolition shall not occur until a building permit has been issued for the alterations or redevelopment as described in the applicable Certificate of Appropriateness. [Amd.-Ord. 14-15 7/7/2015]
(4)
All structures approved for demolition and awaiting issuance of a building permit for the alterations or redevelopment shall be maintained so as to remain in a condition similar to that which existed at time that the Certificate of Appropriateness for demolition was approved unless the Chief Building Official determines that an unsafe building condition exists in accordance with Section 4.5.3(G). [Amd.-Ord. 14-15 7/7/2015]
(5)
A Certificate of Appropriateness for demolition of 25 percent or more of contributing or individually designated structure shall be subject to the following additional requirements: [Amd.-Ord. 14-15 7/7/2015]
(a)
A demolition plan shall accompany the application for a Certificate of Appropriateness for demolition. The plan shall illustrate all portions of the existing structure that will be removed or altered. [Amd.-Ord. 14-15 7/7/2015]
(b)
The Certificate of Appropriateness for demolition and the Certificate of Appropriateness for alternation or redevelopment shall meet the "Additional Public Notice" requirements of LDR Section 2.4.2(B)(1)(j). [Amd.-Ord. 14-15 7/7/2015]
(6)
The Board upon a request for demolition by a property owner, shall consider the following guidelines in evaluating applications for a Certificate of Appropriateness for demolition of designated historic sites, historic interiors, or buildings, structures, or appurtenances within designated historic districts; [Amd.-Ord. 14-15 7/7/2015]
(a)
Whether the structure is of such interest or quality that it would reasonably fulfill criteria for designation for listing on the national register.
(b)
Whether the structure is of such design, craftsmanship, or material that it could be reproduced only with great difficulty or economically nonviable expense.
(c)
Whether the structure is one of the last remaining examples of its kind in the designated historic district within the city.
(d)
Whether retaining the structure would promote the general and value of a particular culture and heritage.
(e)
Whether there are approved plans for immediate reuse of the property if the proposed demolition is carried out, and what effect those plans will have on the historic district designation or the individual designation of the property. [Amd. Ord. 14-15 7/7/2015] [Amd.-Ord. 55-07 1/15/08]
(7)
No decision of the Board shall result in undue economic hardship for the property owner. The Board shall determine the existence of such hardship in accordance with the definition of undue economic hardship found in Section 4.5.1(H). [Amd.-Ord. 14-15 7/7/2015] [Amd. Ord. 30-08 09/16/08]
(8)
The Board's refusal to grant a Certificate of Appropriateness requested by a property owner for the purpose of demolition will be supported by a written statement describing the public interest that the Board seeks to preserve. [Amd.-Ord. 14-15 7/7/2015]
(9)
The Board may grant a certificate of appropriateness as requested by a property owner, for demolition which may provide for a delayed effective date. The effective date of the certificate will be determined by the Board based on the relative significance of the structure and the probable time required to arrange a possible alternative to demolition. The Board may delay the demolition of designated historic sites and contributing buildings within historic districts for up to six months while demolition of non-contributing buildings within the historic district may be delayed for up to three months. [Amd.-Ord. 14-15 7/7/2015]
(10)
Request for demolition justification statement. A justification statement shall accompany the application for a Certificate of Appropriateness for demolition of any contributing structure in a historic district or individually designated historic structure. The justification statement must include the following:[Amd.-Ord. 14-15 7/7/2015] [Amd. Ord. 55-07 1/15/08]
(a)
A certified report from a registered architect or engineer which provides documentation explaining that the building is structurally unsound and is damaged beyond the ability to repair it at a reasonable cost. The report must include photographs to substantiate the damage. [Amd. Ord. 55-07 1/15/08]
(b)
A certified report from an engineer, architect, general contractor, or other qualified professional which documents the projected cost of repairing the structure and returning it to a safe and habitable condition. [Amd. Ord. 55-07 1/15/08]
(c)
An appraisal of the property in its current condition, its value as vacant land and its potential value as a preserved and restored historic property. [Amd. Ord. 55-07 1/15/08]
(d)
Documentation that reasonable efforts have been made to find a suitable alternate location for the structure within the City of Delray Beach to which the contributing/individually designated historic structure could be safely relocated. [Amd. Ord. 55-07 1/15/08]
(e)
Documentation that the applicant or property owner has taken such steps as it deems necessary to preserve the structure requested for demolition including consultation with community groups, public agencies, and interested citizens, recommendations for acquisition of property by public or private bodies, or agencies and exploration of the possibility of moving one or more structures or other features. [Amd.-Ord. 14-15 7/7/2015]
(11)
Salvage and recordation of historic structures.
(a)
The property owner shall contact the Delray Beach Historical Society for the purpose of salvaging and preserving specified classes of building materials, architectural details and ornaments, fixtures, and the like for reuse in the restoration of the other historic properties. Confirmation of such efforts shall be provided in a written statement and submitted with the other demolition application prior to consideration by the Historic Preservation Board. [Amd. Ord. 14-15 7/7/2015]
(b)
The Board may, with the consent of the property owner, request that the Delray Beach Historical Society, or the owner, at the owner's expense, record the architectural details for archival purposes prior to demolition. [Amd. Ord. 14-15 7/7/2015]
i.
The recording may include, but shall not be limited to photographs, documents and scaled architectural drawings to include elevations and floor plans. [Amd. Ord. 14-15 7/7/2015]
ii.
One copy of the recording shall be submitted to the City's Planning and Zoning Department, and one copy shall be submitted to the Delray Beach Historical Society for archiving purposes. [Amd. Ord. 14-15 7/7/2015]
(G)
Unsafe buildings. In the event the Chief Building Official determines that any structure within a designated historic site or designated historic district is unsafe pursuant to the applicable Code of Ordinances, the Chief Building Official will provide the Board with a written statement, photographs, and statement from the property owner to be presented by the Chief Building Official at the next meeting. When appropriate and in accordance with applicable ordinances, the Chief Building Official will attempt to have the structure repaired rather than demolished, and will take into consideration any comments and recommendations by the Board. However, the provisions contained within subsection (A) of this section shall not apply to the Planning and Zoning Director's or designee's declaration that a building is unsafe, nor will the Chief Building Official be precluded from taking whatever steps, as may be required by applicable ordinances to protect the public health and safety of the community. The Board may also endeavor to negotiate with the owner and interested parties, provided such actions do not interfere with procedures in the applicable ordinances. [Amd.-Ord. 14-15 7/7/2015]
(H)
Undue economic hardship.[7] (Ord. No. 12-18, § 3, 9-25-18)
(1)
A property owner(s) experiencing undue economic hardship may file an application for a Certificate of Economic Hardship. A Certificate of Economic Hardship application must be submitted within 30 days of the issuance of a violation notice. The violation notice shall state the defects observed as well as the various incentive programs and preservation organizations that may be available for repair. (Ord. No. 12-18, § 3, 9-25-18)
(a)
The Historic Preservation Board shall schedule a public hearing within 60 days from the receipt of the application and shall provide notice of such hearing to the appropriate entities including the Special Magistrate and the Neighborhood and Community Services Department. A copy of the application for Certificate of Economic Hardship shall be provided to the Code Enforcement Board. (Ord. No. 12-18, § 3, 9-25-18)
(b)
During the period between receipt of the Certificate of Economic Hardship application and the hearing before the Board, it is the sole responsibility of the applicant to discuss the proposed violation(s) with various local preservation organizations to consider alternatives that will avoid an economic hardship and have the least adverse effect to the property and the districts. Proof of the applicant's efforts will be a factor considered by the Historic Preservation Board in determining whether to issue a Certificate of Economic Hardship. (Ord. No. 12-18, § 3, 9-25-18)
(2)
In all instances where there is a claim of undue economic hardship, the property owner shall submit with the application for Certificate of Economic Hardship, the following documentation: (Ord. No. 12-18, § 3, 9-25-18)
(a)
For All Property: (Ord. No. 12-18, § 3, 9-25-18)
1.
The amount paid for the property, the date of purchase, and the party from whom purchased; (Ord. No. 12-18, § 3, 9-25-18)
2.
The assessed value of the land and improvements thereon, according to the two most recent assessments; (Ord. No. 12-18, § 3, 9-25-18)
3.
Real estate taxes for the previous two years; (Ord. No. 12-18, § 3, 9-25-18)
4.
Annual debt service or mortgage payments, if any, for the previous two years; (Ord. No. 12-18, § 3, 9-25-18)
5.
All appraisals, if any, obtained within the previous two years by the owner or applicant in connection with the purchase, financing, or ownership of the property; (Ord. No. 12-18, § 3, 9-25-18)
6.
Any listing of the property for sale or rent, price asked, and offers received, if any; and (Ord. No. 12-18, § 3, 9-25-18)
7.
Any consideration by the owner as to profitable adaptive uses for the property, including but not limited to possible fair market rents for the property if it were rented or leased in its current condition. (Ord. No. 12-18, § 3, 9-25-18)
(b)
For Income Property (Actual or Potential): (Ord. No. 12-18, § 3, 9-25-18)
1.
The annual gross income from the property for the previous two years, if any; (Ord. No. 12-18, § 3, 9-25-18)
2.
The annual cash flow, if any, for the previous two years; and (Ord. No. 12-18, § 3, 9-25-18)
3.
The status of leases, rentals, or sales for the previous two years. (Ord. No. 12-18, § 3, 9-25-18)
(3)
An applicant may submit and the Board may require that an applicant furnish additional information relevant to the Board's determination of any alleged undue economic hardship. The Board may also require, in appropriate circumstances, that information be furnished under oath. (Ord. No. 12-18, § 3, 9-25-18)
(4)
In the event that any of the required information is not reasonably available to the property owner and cannot be obtained by the property owner, the property owner shall file statement of the information which cannot be obtained and the reasons why such information cannot be reasonably obtained. Where such unobtainable information concerns required financial information, the property owner will submit a statement describing estimates which will be as accurate as are feasible. (Ord. No. 12-18, § 3, 9-25-18)
Repealed Sections 4.5.1 (I), (J), (K), (L), (M), (N) and (O) in their entirety and enacted new sections 4.5.1 (I), (J), (K), and (L) [Ord. 01-12 8/21/12]
(I)
Local register of historic places. The following Historic Districts, Sites, and/or Buildings are hereby affirmed or established:
(1)
Nassau Park Historic District which consists of Lots 2-19 of Nassau Park, as recorded in Plat Book 16, page 67 of Palm Beach County, Florida; Lots 1-12 of Wheatley Subdivision, as recorded in Plat Book 16, page 98 of Palm Beach County, Florida; and Block E, Lot 4 and Block F, Lot 1 of John B. Reid's Village as recorded in Plat Book 21, page 95 of Palm Beach County, Florida. (Original designation by Ordinance 97-87 adopted on January 12, 1988)
(2)
Old School Square Historic District which consists of the south one-half of Block 57 and Blocks 58-62, Blocks 65-70, the west half of Blocks 74 and 75, and Lots 1-6 of Block 76, Town of Linton Plat, as recorded in Plat Book 1, Page 3, Palm Beach County Records. (Original designation by Ordinance 1-88 adopted on February 9, 1988).
(3)
Del-Ida Park Historic District which consists of Blocks 1 through 13, inclusive, along with Tracts A, B, and C DEL-IDA PARK, according to the Plat thereof on file in the Office of the Clerk of the Circuit Court in and for Palm Beach County, Florida recorded in Plat Book 9 at Page 62 (Original designation by Ordinance 9-88 adopted on March 22, 1988)
(4)
Sundy Feed Store, located on the South 85 feet of the North 153 feet of Lot 1, Block 84, Delray Beach, Palm Beach County. (Original designation by Ordinance 102-88, August 23, 1988, Note: In 1991, the structure was relocated outside of the City of Delray Beach.)
(5)
Historic Depot Square, located on a parcel of land lying in Section 18, Township 46 South, Range 43 East, City of Delray Beach (Original designation by Ordinance 119-88, October 11, 1988)
(6)
Marina Historic District which consists of Lots 1 to 11, inclusive, Lots 22 to 66, inclusive and Lots 83 to 93, inclusive, Palm Square, an unrecorded Plat located in Block 125 and Block 133 of the Town of Linton n/k/a Delray Beach (according to the plat thereof as recorded in Plat Book 1, Page 3 of the Public Records of Palm Beach County, Florida); Together with Lots A, D, E and F, Riker Square, according to the Plat thereof, recorded in Plat Book 18, Page 74 of the Public Records of Palm Beach County, Florida; Together with all of Anchorage Condominium, according to the Declaration of Condominium thereof, as recorded in Official Records Book 3060, Page 369, of the Public records of Palm Beach County, Florida, said Condominium being located within Lots B and C, Riker Square, according to the Plat thereof, recorded in Plat Book 18, Page 74 of the Public Records of Palm Beach County, Florida; Together with Lot 1 and Lots 5 to 12, inclusive, Re-subdivision of Block 118, Town of Linton n/k/a Delray Beach, according to the Plat thereof, recorded in Plat Book 2, Page 8 of the Public Records of Palm Beach County, Florida; Together with all of Sloan Hammock Condominium, according to the Declaration of Condominium thereof, as recorded in Official Records Book 9271, Page 258, of the Public records of Palm Beach County, Florida, said Condominium being located within Lots 2, 3 and 4, Re-subdivision of Block 118, Town of Linton n/k/a Delray Beach, according to the Plat thereof, recorded in Plat Book 2, Page 8 of the Public Records of Palm Beach County, Florida; Together with Lots 1 to 7, inclusive and Lots 13 to 24, inclusive, Re-subdivision of Block 126, Town of Linton n/k/a Delray Beach, according to the Plat thereof, recorded in Plat Book 11, Page 4 of the Public Records of Palm Beach County, Florida; Together with the South 50 feet of the North 176 feet of the West 165 feet of Block 126, Town of Linton n/k/a Delray Beach, according to the Plat thereof, recorded in Plat Book 1, Page 3 of the Public Records of Palm Beach County, Florida; Together with Lots 1 to 8, inclusive, and Tracts A and B, Marine Bay, according to the Plat thereof, recorded in Plat Book 89, Page 162 of the Public Records of Palm Beach County, Florida; Together with all of Block 134 lying West of Intracoastal Waterway, Town of Linton n/k/a Delray Beach, according to the Plat thereof, recorded in Plat Book 1, Page 3 of the Public Records of Palm Beach County, Florida; Together with Lots 13 to 24, inclusive (less South 15 feet SE 3rd Street and North 15 feet SE 2nd Street R/WS, Gracey-Byrd Subdivision, according to the Plat thereof, as recorded in Plat Book 10, Page 52 of the Public Records of Palm Beach County, Florida; Together with Lots A to E, inclusive, The Moorings, according to the Plat thereof, as recorded in Plat Book 20, Page 27 of the Public Records of Palm Beach County, Florida; Together with the North 1/2 of the South 1/2 of Block 127 (less the North 64 feet thereof, and the West 20 feet SE 7th Avenue R/W), Town of Linton n/k/a Delray Beach, according to the Plat thereof, recorded in Plat Book 1, Page 3 of the Public Records of Palm Beach County, Florida; together with Lots 1 and 2, Stone Hedge, according to the Plat thereof, as recorded in Plat Book 58, Page 176 of the Public Records of Palm Beach County, Florida; Together with Lots 23 and 24, and the East 8 feet of abandoned alley lying west of and adjacent thereto, Block 120, Blank-Nichols Subdivision, according to the Plat thereof, as recorded in Plat Book 13, Page 28 of the Public Records of Palm Beach County, Florida; Together with Lots 1 to 3, inclusive, and the North 20 feet of Lot 4, Block 128, Blank-Nichols Subdivision, according to the Plat thereof, as recorded in Plat Book 13, Page 28 of the Public Records of Palm Beach County, Florida. (Original designation by Ordinance 156-88 adopted on December 20, 1988; Amended by Ordinance 38-07, February 2, 2008; Amended by Ordinance 10-09, March 17, 2009)
(7)
The Koch House, 777 North Ocean Boulevard. Palm Beach Shore Acres, Lot 21, Block D, Delray Beach, Palm Beach County. (Original Designation by Ordinance 162-88, January 10, 1989.)
(8)
Site of School No. 4 Delray Colored, located on Block 28, Lot 2, N.W. 5th Avenue. (Original designation by Ordinance 16-89, April 11, 1989)
(9)
Greater Mount Olive Missionary Baptist Church, 40 N.W. 4th Avenue, located on Lot 7, Block 28, Delray Beach. (Original designation by Ordinance 17-89, April 11, 1989)
(10)
St. Paul African Methodist Episcopal Church, 119 N.W. 5th Avenue, located on Lot 5, Block 27, Delray Beach (Original designation by Ordinance 18-89, April 11, 1989)
(11)
The Free and Accepted Masons Of Delray Beach Lodge 275, 85 N.W. 5th Avenue, located on Lot 1, Block 28, Delray Beach (Original designation by Ordinance 19-89, April 11, 1989)
(12)
St. Matthew Episcopal Church, 404 S.W. 3rd Street, located on Lot 1, Block 32, Delray Beach (Original designation by Ordinance 20-89, April 11, 1989)
(13)
Historic Fontaine Fox House Properties, The Fontaine Fox House is located at 610 N. Ocean Boulevard; the complete boundary of the site consists of Lot 1 of Ocean Apple Estates; Lots 1 and 2 of Ocean Apple Estates, Plat III; the South 50 feet of Lots 1 and 2, Ocean Apple Estates, Plat II; and Lot 3, Ocean Apple Estates, Plat II. (Original Designation by Ordinance 70-89, October 24, 1989, as amended by Ordinance 43-11, December 6, 2011 and Ordinance 04-13, February 19, 2013).
(14)
The Scott House, 19 Andrews Avenue, located on the North 50 feet of the West 110 feet of the South 100 feet, less the West 10 feet of the Beach Lot 15, Subdivision of the Fractional East Half of Section 16, Township 46 South, Range 43 East, Delray Beach, Palm Beach County, Florida. (Original designation by Ordinance 17-90, May 22, 1990).
(15)
The Colony Hotel and the Colony Hotel North Annex, located on the South 12 feet of Lot 18, Alley South of Lot 18, East 25 feet of Lot 21 and Lots 22, 23, 24 and 25, Inclusive, Block 108. And Lots 5, 6 and 7, Less 5 foot Road R/W, Block 108, Town of Delray, with the designation pertaining to the buildings only and not the grounds. (Original designation by Ordinance 22-91, March 26, 1991)
(16)
Milton-Myers Post No. 65, the American Legion of the United States, 263 N.E. 5th Avenue, located on Lots 5, 14 and 15, Block 106, Delray Beach, formerly Town of Linton, Palm Beach County, Florida. (Original designation by Ordinance 68-94, October 18, 1994.)
(17)
Solomon D. Spady House, 170 N.W. 5th Avenue, located on Lots 5, 6 and the north 26.25 feet of Lot 7, Block 19, Delray Beach, formerly Town of Linton, Palm Beach County, Florida. (Original designation by Ordinance 08-95, February 7, 1995.)
(18)
The Susan Williams House, located at 154 N.W. 5th Avenue, Delray Beach, Florida; more particularly described as follows: south 12 feet of Lot 7 and Lot 8, Melvin S. Burd Subdivision, as recorded in Plat Book 11, Page 73, of the Public Records of Palm Beach County, Florida (154 N.W. 5th Avenue). (Original designation by Ordinance 09-95, February 7, 1995; amended by Ordinance 29-02, July 16, 2002.)
(19)
The Monterey House, 20 North Swinton Avenue, located on Lot 12, Block 60, Delray Beach, formerly Town of Linton, Palm Beach County, Florida. (Original designation by Ordinance 27-95, June 6, 1995.)
(20)
The Historic Bungalow, 24 North Swinton Avenue, located south 50 feet of Lot 11, Block 60, Delray Beach, formerly Town of Linton, Palm Beach County, Florida. (Original designation by Ordinance 28-95, June 6, 1995.)
(21)
The Blank House, 85 S.E. 6th Avenue, located on Lots 12, 13, and 14, Block 117, Delray Beach, formerly Town of Linton, Palm Beach County, Florida. (Original designation by Ordinance 26-95, June 6, 1995.)
(22)
The Sandoway House, 142 South Ocean Boulevard. Beach Lots Delray, the South 73 feet of the North 100 feet of Lot 24, less the West 355 feet, as recorded in Plat Book 1, Page 25, of the Public Records of Palm Beach County, Florida. (Original designation by Ordinance 57-96, December 3, 1996.)
(23)
West Settlers Historic District is bounded on the north by Martin Luther King, Jr. Boulevard (N.W. 2nd Street). The eastern boundary is as follows: the alley running north and south in Block 43; N.W. 3rd Avenue between N.W. 1st Street and the east-west alley of Block 36. The southern boundary is N.W. 1st Street between N.W. 3rd Avenue and the alley in Block 43; the east-west alley in Block 36 and Block 28 and the south property line of Lot 13, Block 20. The western boundary is the north-south alley and the eastern one-half of the block south of the alley of Block 19; the north-south alley in the north half of Block 20. (Original designation by Ordinance 6-97, February 18, 1997; Amended by Ordinance 38-07, February 5, 2008).
(24)
The Trinity Evangelical Lutheran Church Chapel, located on a portion of the Trinity Evangelical Lutheran Church property at 400 North Swinton Avenue, Delray Beach, Florida; more particularly described as the East ½ of Lot 12, Section 8-46-43, Delray Beach, Palm Beach County, Florida. The chapel is the only building in the church complex receiving an historic designation. The church complex is located at the northwest corner of Lake Ida Road and Swinton Avenue. (Original designation by Ordinance 26-97, July 1, 1997.)
(25)
The Turner House, located at 145 N.E. 6th Avenue, Delray Beach, Florida; more particularly described as the South 27.6 feet of Lot 5, less the West 5 feet SR R/W, Lots 6 and 7, less the West 5 feet SR R/W, of Block 115, as recorded in Plat Book 1 at Page 3 of the Public Records of Palm Beach County, Florida. (Original designation by Ordinance 46-97, November 18, 1997.)
(26)
The Price House, located at 1109 Sea Spray Avenue, Delray Beach, Florida; more particularly described as Lot 11, Sea Spray Estates, as recorded in Plat Book 21 at Page 15 of the Public Records of Palm Beach County, Florida. (Original designation by Ordinance 12-98, March 3, 1998.)
(27)
The Fellowship Hall of the First Presbyterian Church of Delray Beach, located at 36 Bronson Street, Delray Beach, Florida; more particularly described as Lots 16, 17, 18 and 19, Block 3, Ocean Park Subdivision, as recorded in Plat Book 5 at Page 15 of the Public Records of Palm Beach County, Florida. (Original designation by Ordinance 46-99, November 16, 1999.)
(28)
The Atlantic Avenue Bridge (State Structure #930864), located at East Atlantic Avenue and the Intracoastal Waterway in the City of Delray Beach, Palm Beach County, Florida. (Original designation by Ordinance 18-00, August 15, 2000)
(29)
The George Bush Boulevard Bridge, formerly known as the N.E. 8th Street Bridge, (State Structure #930026), located at George Bush Boulevard and the Intracoastal Waterway in the City of Delray Beach, Palm Beach County, Florida. (Original designation by Ordinance 19-00, August 15, 2000.)
(30)
The Water House, located at 916 and 918 Northeast 5th Street, Delray Beach, Florida; more particularly described as the West 84.82 feet of Lot 37, Las Palmas, Delray Beach, Florida, according to the Plat thereof recorded in the Office of the Clerk of the Circuit Court in and for Palm Beach County, Florida, in Plat Book 10 at Page 68. (Original designation by Ordinance 15-01, February 20, 2001.)
(31)
The O'Neal House, located at 910 N.E. 2nd Avenue, Delray Beach, Florida, more particularly described as follows: Lots 1, 2, 3, 28 and 29, Block 10, Dell Park, Delray Beach, Palm Beach County, Florida, according to the Plat thereof, recorded in Plat Book 8 at Page 56 of the Public Records of Palm Beach County, Florida. (Original designation by Ordinance 27-02, July 16, 2002.)
(32)
The Amelung House, located at 102 NE 12th Street, Delray Beach, Florida, more particularly described as follows: Lot 9, Block 6, Dell Park, according to the Plat recorded in Plat Book 8, Page 56, recorded in the Public Records of Palm Beach County, Florida; said land situate, lying and being in Palm Beach County, Florida. (Original designation by Ordinance 25-03, August 19, 2003.)
(33)
The Dewitt Estate, located at 1110 North Swinton Avenue, Delray Beach, Florida, more particularly described as the East 365.69 feet of Lot 8 (less the West 40.00 feet of the South 20.00 feet of said East 365.69 feet of Lot 8) Subdivision of South half of East half of Lot 8, Section 8, Township 46 South, Range 43 East, according to the Plat thereof, as recorded in Plat Book 16, Page 80, of the Public Records of Palm Beach County, Florida. (Original designation by Ordinance 71-04, January 4, 2005.)
(34)
The Hartman House, located at 302 N.E. 7th Avenue, Delray Beach, Florida, more particularly described as follows: Lots 13 and 14, Block 113, Highland Park according to the map or plat thereof as recorded in Plat Book 2, Page 79, of the Public Records of Palm Beach County, Florida. (Original designation by Ordinance 26-05, May 3, 2005.)
(35)
The Sewell C. Biggs House, located at 212 Seabreeze Avenue, Delray Beach, Florida, more particularly described as follows: Lot 21 and the West 35 feet of Lot 22, Delray Beach Esplanade, according to the plat thereof, as recorded in Plat Book 18, Page 39, Public Records of Palm Beach County, Florida. (Original designation by Ordinance 50-05, July 19, 2005.)
(36)
The Harvel House, located at 182 NW 5th Avenue, Delray Beach, Florida, more particularly described as follows: Lots 2 and south five feet of Lot 1, Melvin S. Burd Subdivision, according to the map or plat thereof as recorded in Plat Book 11, Page 73, of the Public Records of Palm Beach County, Florida. (Original designation by Ordinance 16-10, July 20, 2010.)
(37)
Adams Auto Dealership, located at 290 SE 6 th Avenue, Delray Beach, Florida, more particularly described as follows: Lots 30 and 31, Block 111, Town of Delray. (Original designation by Ordinance 24-12, August 21, 2012)
(38)
Waters-Wellenbrink Residence, located at 1108 Vista Del Mar Drive North, Delray Beach, Florida, more particularly described as follows: West 25.13 Feet of Lot 32 and Lot 33, Delray Beach Esplanade. (Original designation by Ordinance 29-12, October 16, 2012)
(39)
The Marina House, located at 170 Marine Way, Delray Beach, Florida, Lot 15, A Subdivision of Block 126, Delray, Florida, according to the Plat thereof, recorded in Plat Book 11, Page 4, of the Public Records of Palm Beach County, Florida. (Original designation by Ordinance 03-13. March 5, 2013.)
(40)
Two Fisher Lane, located at 2 Fisher Lane, Delray Beach, Florida, more particularly described as follows: Lots 40 and 41 and Part of 50 Feet abandoned Canal Street lying east of and adj to, Las Palmas Sub. (Original designation by Ordinance 18-13. September 3, 2013)
(41)
Ridley Temple Church of God In Christ, located at 102 SW 12th Avenue, Delray Beach, more particularly described as the Lots 1 and 13, Block 3, Atlantic Park Gardens, a subdivision of the City of Delray Beach, Florida as per Plat recorded in Plat Book 14, Page 56, of the Public Records of Palm Beach County, Florida together with Lot 14, Block 3, Atlantic Park Gardens, Delray, according to the Plat thereof on file in the office of the Clerk of the Circuit Court in and for Palm Beach County, Florida, recorded in Plat Book 14, Page 56. (Original designation by Ordinance 01-16, January 19, 2016).
(42)
The Clint Moore House, located at 1420 North Swinton Avenue, Delray Beach, more particularly described as the North Half of the Northeast Quarter of Lot 7, less the West 189.7 feet thereof and also less the East 33 feet thereof for road right-of-way of Swinton Avenue, of Section 8, Township 46 South, Range 43 East, Map Showing Subdivisions of Portions of Townships 45 and 46 South, Range 43 East, according to the map or plat thereof as recorded In Plat Book 1, Page 4, Public Records of Palm Beach County, Florida. Together with a sewer easement 6 feet in width on the South 6 feet or the South 100.24 feet of the West 189.7 feet of the North Half of the Northeast Quarter of Lot 7, of Section 8, Township 46 South, Range 43 East, less the West 25 feet for dedicated right-of-way as in O.R. Book 1443, Page 586, corrected in O.R. Book 1778, Page 268, Public Records of Palm Beach County, Florida. (Ord. No. 05-17, § 3, 4-4-17)
(43)
The Harden-Hart House, located at 516 North Swinton Avenue, Delray Beach, more particularly described as: The North 80 feet of the South 253 feet of the East 183 feet of the Southeast Quarter of Lot 11, Section 8, Township 46 South, Range 43 East, according to the Plat thereof on file in the Office of the Clerk of the Circuit Court in and for Palm Beach County, Florida, recorded in Plat Book 1, Page 4, less the East 33 feet thereof as conveyed to the City of Delray Beach as recorded in Deed Book 557, Page 269. (Ord. No. 15-19, § 3, 4-16-19)
(44)
The Wellbrock House, located at 20 and 22 North Swinton Avenue, Delray Beach, more particularly described as: Lot 12, LESS the South 4 feet thereof, Block 60, TOWN OF DELRAY, Florida as recorded in Plat Book 1, Page 3, of the Public Records of Palm Beach County, Florida. (Ord. No. 44-20, § 2, 9-10-20)
(45)
DOC'S, located at 10 North Swinton Avenue, Delray Beach, more particularly described as: Lot 16, Block 60, Map of the Town of Linton (now Delray Beach), according to the map or plat thereof as recorded in Plat Book 1, Page 3, Public Record of Palm Beach County, Florida, LESS and EXCEPT that portion conveyed to the State of Florida by Warranty Deed recorded in the O.R. Book 1607, page 471 and described as follows: The South 20 feet of Lot 16, Block 60, according to the Plat of Original Town of Linton, as recorded in Plat Book 1, Page 3, in the Public Records of Palm Beach County, Florida, in Section 17, Township 46 South, Range 43 east, and that part of said Lot 16 which is included in the external area formed by a 25 foot radius arc which is tangent to a line 20 feet north of and parallel to the South line of said lot 16 and tangent to the East line of said Lot 16. (Ord. No. 28-21, § 2, 12-6-22)
(J)
Tax exemption for historic properties. A tax exemption is available for improvements to qualifying contributing properties in a designated historic district or individually designated properties, as listed in Section 4.5.1(I). Qualifying properties shall be exempt from that portion of ad valorem taxation levied by the City of Delray Beach on 100 percent of the increase in assessed value resulting from any HPB approved renovation, restoration, rehabilitation, or other improvements of the qualifying property made on or after the effective date of the original passing of Ordinance 50-96 on November 19, 1996.
(1)
The exemption does not apply to:
(a)
Taxes levied for payment of bonds;
(b)
Taxes authorized by a vote of the electors pursuant to Section 9(b) or Section 12, Article 7 of the Florida Constitution; or
(c)
Personal property.
(2)
Duration of tax exemption. The exemption period shall be for ten years, unless a lesser term is set by the City Commission.
(a)
The term of the exemption shall be specified in the resolution approving the exemption and shall continue regardless of any changes in the authority of the City to authorize such exemption or change in ownership of the property.
(b)
To retain an exemption, the historic character of the property and the improvements which qualified the property for an exemption must be maintained in their historic state over the period for which the exemption was authorized.
(3)
Effective date of exemption. The effective date of the tax exemption shall be January 1 of the year following the year in which a historic preservation exemption covenant is recorded and a copy of the Final Application and resolution of the City Commission, as approved, have been transmitted to the Palm Beach County Property Appraiser.
(4)
Qualifying properties. Real property located within the City qualifies for the Historic Property Tax Exemption if, at the time the exemption is approved by the City Commission, the property:
(a)
is individually listed in the National Register of Historic Places pursuant to the National Historic Preservation Act of 1966, as amended; or,
(b)
is a contributing property within a district listed on the National Register of Historic Places or,
(c)
is a contributing property within a locally designated historic district or is individually designated and listed on the Local Register of Historic Places; and,
(d)
has been certified by the Historic Preservation Board as satisfying (a), (b), or (c).
(5)
Qualifying improvements. Improvements to a qualifying property for an exemption, the improvement must:
(a)
be consistent with the United States Secretary of the Interior's Standards for Rehabilitation, as amended; and
(b)
be a constructed and/or installed improvement as approved by the Historic Preservation Board and as established in rules adopted by the Department of State, Division of Historical Resources, FAC 1A-38, as amended which defines real property improvements as changes in the condition of real property brought about by the expenditure of labor and money for the restoration, renovation, or rehabilitation of such property. Improvements shall include, but are not limited to: modifications, repairs, or additions to the principal contributing building and its associated accessory structures (i.e. a garage, cabana, guest cottage, storage/utility structures, swimming pools), whether existing or new. The exemption does not apply to improvements made to non-contributing principal buildings, existing non-contributing accessory structures, or undesignated structures and/or properties; and,
(c)
be consistent with Section 4.5.1(E), "Development Standards", of the City's Land Development Regulations; and
(d)
include, as part of the overall project, visible improvements to the exterior of the structure.
(6)
Evaluation of property used for government or nonprofit purposes.
(a)
For purposes of the exemption under Section 196.1998, Florida Statutes, a property is being used for government or nonprofit purposes if the sole occupant of at least 65 percent of the useable space is an agency of the federal, state or a local government unit or a nonprofit organization certified by the Department of State under Section 617.0301, Florida Statutes.
(b)
For purposes of the exemption under Section 196.1998, Florida Statutes, a property is considered regularly and frequently open to the public if public access to the property is provided not less than 12 days a year on an equitably spaced basis, and at other times by appointment. Nothing herein shall prohibit the owner from charging a reasonable nondiscriminatory admission fee, comparable to fees charged at similar facilities in the area.
(7)
Application for exemption. Any property owner, or the authorized agent of the owner, that desires an ad valorem tax exemption for the improvement of a historic property must submit a Historic Property Tax Exemption Application to the Planning and Zoning Department upon completion of the qualifying improvements.
(a)
The application shall indicate the estimated cost of the total project, the estimated cost attributed solely to the historic structure, and project completion date as determined by the Certificate of Occupancy issued by the Building Department.
(b)
The Historic Property Tax Exemption Application shall be accompanied by a copy of the most recent tax bill from the Palm Beach County Property Appraiser for the property; a new property survey illustrating the improvements; a copy of the building permit application indicating estimated project cost; a copy of the Certificate of Occupancy/Final Inspection; and photographs illustrating the before and after of each improvement, including both the interior, exterior, and all new construction. The photographs shall be identified with a date and description indicating the impact of the improvement.
(c)
The application must be submitted within three months from the date of issuance of a Certificate of Occupancy.
(d)
The Historic Preservation Planner will inspect the completed work to verify such compliance prior to Historic Preservation Board review.
a.
If the Historic Preservation Board determines that the work is a qualifying improvement and is in compliance with the approved plans and the review standards contained in Section 4.5.1(E), the Board shall recommend that the City Commission grant the Historic Property Tax Exemption Application.
b.
Upon a recommendation of approval of a Historic Property Tax Exemption Application by the Historic Preservation Board, the application shall be placed by resolution on the agenda of the City Commission for approval. The resolution of the City Commission approving the application shall provide the name of the owner of the property, the property address and legal description, a recorded restrictive covenant in the official records of Palm Beach County as a condition of receiving the exemption, and the effective dates of the exemption, including the expiration date.
c.
If the Historic Preservation Board determines that the work as completed is either not consistent with the approved plans or is not in compliance with the review standards contained in Section 4.5.1(E), the applicant shall be advised that the request has been denied.
(8)
Historic preservation exemption covenant.
(a)
To qualify for an exemption, the applicant must sign and return the Historic Preservation Exemption Covenant. The covenant as established by the Department of State, Division of Historical Resources, shall be in a form approved by the City of Delray Beach City Attorney's Office and applicable for the term for which the exemption is granted and shall require the character of the property and qualifying improvements to be maintained during the period that the exemption is authorized.
(b)
On or before the effective date of the exemption, the owner of the property shall have the covenant recorded in the official records of Palm Beach County, Florida, and shall cause a certified copy of the recorded covenant to be delivered to the City's Historic Preservation Planner. Such covenant shall be binding on the current property owner, transferees, and their heirs, assigns and successors. A violation of the covenant shall result in the property owner being subject to the payment of the differences between the total amount of the taxes which would have been due in March of each of the previous years in which the covenant or agreement was in effect had the property not received the exemption and the total amount of taxes actually paid in those years, plus interest on the difference calculated as provided in Sec. 212.12(3), Florida Statutes.
(9)
Notice of approval to the property appraiser.
(a)
Upon the receipt of a certified copy of the recorded restrictive covenant by the Historic Preservation Planner, the Planner shall transmit a copy of the approved Final Application/Request for Review of Completed Work, the exemption covenant and the resolution of the City Commission approving the Final Application and authorizing the tax exemption to the Palm Beach County Property Appraiser.
(b)
The resolution approving an historic tax exemption must be filed with the Palm Beach County Property Appraiser on or before January 1 of the year in which an exemption is requested. Therefore, the Final Application/Request for Review of Completed Work must be submitted no later than November 1 of the year the work was completed in order to process the application for both the Historic Preservation Board and City Commission approvals. If the Final Application/Request for Review of Completed Work is not submitted by November 1 of the year the work was completed, the abatement will not take effect until the following year of the date of submittal.
(10)
Revocation Proceedings:[8] (Ord. No. 12-18, § 4, 9-25-18)
(a)
The Historic Preservation Board may initiate proceedings to revoke the ad valorem tax exemption provided herein, in the event the applicant, or subsequent owner or successors in interest to the property, fails to maintain the property according to the terms, conditions and standards as set forth at Sections 4.5.1(E)(5) and 4.5.1(E)(9) or violates the terms of the Historic Preservation Exemption Covenant. (Ord. No. 12-18, § 4, 9-25-18)
(b)
The Director of Development Services, or designee, shall provide notice to the current owner of record of the property and the Historic Preservation Board shall hold a revocation hearing and make a recommendation to the City Commission. (Ord. No. 12-18, § 4, 9-25-18)
(c)
The City Commission shall review the recommendation of the Historic Preservation Board and make a determination as to whether the tax exemption shall be revoked, a written resolution revoking the exemption and notice of penalties as provided in Paragraph 8 of the covenant will be provided to the owner, the Palm Beach County Property Appraiser, and filed in the official records of Palm Beach County. (Ord. No. 12-18, § 4, 9-25-18)
(d)
Upon receipt of the resolution revoking the tax exemption, the Palm Beach County Property Appraiser shall discontinue the tax exemption on the property as of January 1 of the year following receipt of the notice of revocation. (Ord. No. 12-18, § 4, 9-25-18)
(K)
Criteria for change of historic designation and/or classification.
(1)
A survey of all historic districts may be conducted by the City every five years. The survey report may recommend changes to the historic designation and/or classification of properties located within or immediately adjacent to a designated historic district.
(a)
Change of historic designation through removal from a historic district. If a survey report reveals that a part of a historic district that touches the edge of the boundary of the historic district at the time of the original designation of that district has had its historic integrity irreversibly compromised due to inappropriate development then the offending part of the district may be removed and the boundary lines of the historic district revised to reflect the removal in accordance with LDR Section 4.5.1(O).
1.
If a property owner within the part of the district seeking removal from the historic district desires to retain the historic designation for their property, then they may apply to individually designate their property pursuant to LDR Sections 4.5.1(B) and (C). If a property has received a tax exemption pursuant to LDR Section 4.5.1(M) as a contributing structure within a historic district but does not qualify for individual designation, then the part of the district seeking to be removed from the district which includes said property may not be removed until the tax exemption expires pursuant to LDR Section 4.5.1(M)(3).
(b)
Criteria for change of historic classification. If a City-initiated survey conducted within the last five years reveals that a property within a historic district should be reclassified as either contributing or non-contributing, then the classification may be revised in accordance with LDR Section 4.5.1(O) and shall be determined as follows:
1.
The survey report recommends the inclusion of an additional "Period of Significance", which would reclassify properties from non-contributing to contributing; or
2.
The survey report recommends that a property or properties have been so significantly altered that the changes are irreversible and have compromised the structures historic integrity of the structure, which would reclassify the structure from contributing to non-contributing.
(c)
Change of historic designation through expansion of a historic district. The boundaries of a historic district may be expanded based upon the recommendation of a survey report to include those properties recommended for inclusion within the district in accordance with LDR Section 4.5.1(O), or a new historic district may be created to include those identified properties in accordance with LDR Section 4.5.1(C).
(L)
Procedures for change of historic designation and/or classification.
(1)
Procedures for change of historic designation through removal from or expansion of a historic district. Applications shall be made to the Historic Preservation Board and may be initiated by written request of:
(a)
The Historic Preservation Board based upon the recommendations of a survey report completed within five years prior to the application; or
(b)
The City Commission based upon the recommendations of a survey report completed within five years prior to the application; or
(c)
Any owner(s) of a property to be removed or added based upon the recommendation of a City-initiated survey completed within 12 months or less prior to application. Applications submitted by property owners shall include:
1.
photographs and addresses of all properties that will be either removed from or added to the historic district; and
2.
signatures of at least 75 percent of the property owners that are located in the area that will be removed from or added to the historic district.
(d)
For the purposes of this section, completion date of the final survey report is determined by the date of acceptance by the Historic Preservation Board.
(e)
The Planning and Zoning Director or his/her designee shall conduct a preliminary evaluation of the information provided on each application to determine if it generally conforms with criteria in LDR Section 4.5.1(N)(1). The Planning and Zoning Director or his/her designee shall then prepare a report which shall contain the following:
1.
Proposed revised legal boundaries of the historic district;
2.
Analysis of the historic significance and character of the property(ies) to be removed from or added to the historic district; and
3.
A staff recommendation as to whether or not the properties should be removed due to irreversible loss of historic integrity as a result of inappropriate development within a historic district or part of a district or whether or not the additional properties should be added to the historic district due to an increase in contributing structures adjacent to the district.
(f)
A public hearing shall be scheduled before the Historic Preservation Board. Notice of said hearing shall be made to the owner(s) of all properties within the subject historic district and the owner(s) of all properties within 500 feet of the affected properties at least ten days prior to the hearing by regular mail. Additional notice shall be given in the same manner as provided for a rezoning action [see Section 2.4.2(B)(1)(b)] and by notice published in the newspaper at least ten days prior to the hearing, provided; however, posting pursuant to 2.4.2(B)(1)(b) is not required.
(2)
Procedures for change of historic classification. Applications to change the historic classification of a property or properties within a historic district shall be made to the Historic Preservation Board and may be initiated by written request of:
(a)
The Historic Preservation Board based upon the recommendations of a City-initiated survey report completed within five years prior to the application; or
(b)
The City Commission based upon the recommendations of a City-initiated survey report completed within five years prior to the application; or
(c)
Any owner(s) of a property to be reclassified based upon the recommendation of a City-initiated survey report completed within 12 months prior to the application. Applications submitted by property owners shall include:
1.
photographs and addresses of all properties that will be reclassified as contributing or noncontributing; and
2.
signatures of at least 75 percent of the owners whose properties are to be reclassified.
(d)
For the purposes of this section, completion date of the final survey report is determined by the date of acceptance by the Historic Preservation Board.
(e)
The Planning and Zoning Director or his/her designee shall conduct a preliminary evaluation of the information provided on each application to determine if it generally conforms with criteria in LDR Section 4.5.1(N)(1). The Planning and Zoning Director or his/her designee shall then prepare a report which shall contain the following:
i.
Analysis of the properties to be reclassified; and
ii.
A staff recommendation as to whether or not the properties should be reclassified due to either:
1.
loss of historic integrity as a result of irreversible alterations to a contributing property; or
2.
inclusion of an additional "Period of Significance" per the survey report recommendations.
(f)
A public hearing shall be scheduled before the Historic Preservation Board. Notice of said hearing shall be made to the owner(s) of all properties within the subject historic district at least ten days prior to the hearing by regular mail.
(3)
After conducting the public hearing, the Historic Preservation Board shall vote on the recommendation. A majority of the entire Board, present and voting, must act in the affirmative to approve the application. The decision of the Board, whether the application is approved or denied, shall then be transmitted to the City Commission. The City Commission shall consider the recommendation of the Historic Preservation Board through its standard ordinance adoption procedures, except that if any property owner within the subject historic district seeking a change of historic designation and/or classification objects, the City Commission approval shall require a super majority vote of four votes.
[Amd. Ord. 30-91, 3/26/91; Amd. Ord. 78-04, 1/18/05; Amd. Ord. 24-05, 4/19/05; Amd. Ord. 55-07, 1/15/08; Amd. Ord. 38-07, 2/5/08; Amd. Ord. 30-08, 09/16/08; Amd. Ord. 01-12, 8/21/12; Amd. Ord. 13-15, 08/18/2015; Amd. Ord. 14-15, 7/7/2015]
Editor's note— Ord. No. 12-18, § 3, adopted September 25, 2018, repealed and replaced subsection 4.5.1(H) in its entirety. Former subsection 4.5.1(H) pertained to similar subject matter and derived from Ord. 30-08, adopted September 16, 2008.
Editor's note— Ord. No. 12-18, § 4, adopted September 25, 2018, repealed and replaced subsection 4.5.1(J)(10) in its entirety. Former subsection 4.5.1(J)(10) pertained to similar subject matter and derived from Ord. 01-12, adopted August 21, 2012.
Any land use established within the City of Delray Beach must comply with the requirements of Chapter 99, Noise Control, of the Code of Ordinances.
Editor's note— Ord. No. 32-16, § 2, adopted Dec. 6, 2016, repealed § 4.5.3, which pertained to flood damage control districts and derived from Ord. 38-05, adopted June 21, 2005; Ord. 02-11, adopted Jan. 18, 2011; and Ord. 37-11, adopted Nov. 15, 2011. Similar provisions are now reflected in Ch. 10.
Editor's note— Ord. No. 37-17, § 2, adopted Nov. 7, 2017, repealed § 4.5.4, which pertained to coastal construction.
Palm Beach County is a Charter County and, as such, has the ability to enact ordinances which are effective within municipal boundaries. The manner in which such ordinances, which impact the land development process, are accommodated within the City of Delray Beach is set forth below.
(A)
Wetlands protection ordinance.
(1)
Reference. County Ordinance 90-5, adopted on January 23, 1990, applies within the municipal limits of Delray Beach.
(2)
Applicability. To lands defined in Section 3.v of the County Ordinance with exceptions per Section 4.01, therein.
(3)
Process. When this Ordinance is applicable to property which is subject to development review and approval, the applicant is responsible for compliance therewith. Compliance shall be initiated during the City's review process but satisfaction of Ordinance 90-5 may be made a condition of approval.
(B)
Wellfield protection ordinance.
(1)
Reference. The Palm Beach County Wellfield Protection Ordinance as initially adopted on March 07, 1988, and as amended thereafter, applies within the municipal limits of Delray Beach. [Amd. Ord. 4-93 1/26/93]
(2)
Applicability. To land contained within Wellfield Protection Zones 1, 2, 3, and 4 as depicted upon the Wellfield Protection Map Series as maintained by the Palm Beach County Department of Environmental Resources Management and upon which any of the following uses or activities are proposed: [Amd. Ord. 4-93 1/26/93]
(a)
Application for a building permit for nonresidential activity;
(b)
Application for a building permit for residential development of 25 or more units;
(c)
Application for a nonresidential development subject to site plan review or conditional use review and approval.
(3)
Process.
(a)
Development applications. When the above activities occur, the City shall require the applicant to file an "Affidavit of Notification" signed by the County Department of Environmental Resources Management as a part of submission materials. When site plan or conditional approval is required, the staff report provided to the approving body shall contain information as to the potential existence of regulated substances and the manner in which compliance with applicable provisions of the Ordinance will be achieved. [Amd. Ord. 4-93 1/26/93]
(b)
Occupational licenses. Prior to issuance of a new occupational license, certification from the Department of Environmental Resources Management as to conformance of the use to applicable requirements of the Wellfield Protection Ordinance must be provided to the City.
(4)
Additional restrictions. In addition to the provisions of the Countywide Wellfield Protection Ordinance, the following special regulations apply within the City of Delray Beach.
(a)
The installations of any private well within Zones 1, 2, and 3, as depicted on Palm Beach County's Department of Environmental Resources Management Wellfield Protection Map, for the City's Series 20 Wellfield is prohibited.
(b)
The replacement, reconditioning, or extension of the depth of any private well within Zones 1, 2, and 3, as depicted on Palm Beach County's Department of Environmental Resources Management Wellfield Protection Map, for the City's Series 20 Wellfield is prohibited. [Amd. Ord. 4-93 1/26/93
(C)
Traffic performance standards ordinance. [Reference Section 2.4.3(E) of these Land Development Regulations].
(D)
Coastal resource protection ordinance. [Reference Ordinance 34-90, of the City of Delray Beach, adopted on August 28, 1990].
[Amd. Ord. 73-95 12/5/95]
(A)
General. With the adoption of the City's Comprehensive Plan by Ordinance No. 82-89 on November 28, 1989, the City identified the West Atlantic Avenue Corridor as an area in need of redevelopment and revitalization. The West Atlantic Avenue Redevelopment Plan was prepared for the area and was adopted by the City Commission at its meeting of July 11, 1995. This section is created to implement the provisions of the adopted West Atlantic Redevelopment Plan and any updates subsequently adopted. All development within the West Atlantic Overlay District, as defined in Section (B) below, shall take place according to the provisions of the adopted plan. [Amd. Ord. 73-95 12/5/95] (Ord. No. 23-20, § 34, 9-10-20)
(B)
Defined. The West Atlantic Avenue Overlay District is hereby established as the area bounded by I-95 on the west, Swinton Avenue on the East, S.W. 1st Street on the south, and N.W. 1st Street on the north, and extending one block north of N.W. 1st Street along N.W. 5th Avenue to include Blocks 19 and 27, Town of Delray. The regulations established in Section 4.4.13(G)(2) shall apply to all CBD zoned parcels within the Overlay District. [Amd. Ord. 64-04 11/16/04]; [Amd. Ord. 73-95 12/5/95]
(C)
Reserved. [Amd. Ord. 64-04 11/16/04] (Ord. No. 09-19, § 3, 3-12-19)
(A)
Defined. The North Federal Highway Overlay District is hereby established as the area bounded by Dixie Highway on the west, the northern City limits on the north, North Federal Highway on the east, and N.E. 14th Street on the south. The regulations established in Section 4.4.9(D) and G(2) shall apply to all GC zoned parcels within the overlay district. [Amd. Ord. 53-96 11/19/96]
(A)
Defined. The Wallace Drive Overlay District is hereby established as the area bounded by SW 10 th Street on the north, Georgia Street on the south, SW 9 th Avenue on the east and Wallace Drive on the west. The regulations established in Section 4.4.26(F)(3) shall apply to all LI zoned parcels within the overlay district. [Amd. Ord. 1-04 2/3/04]
[Amd. Ord. 33-08 8/19/08]; [Amd. Ord. 66-04 12/6/04]
(A)
Defined. The Southwest Neighborhood Overlay District is the area zoned RM located between Interstate 95 and S.W. 1st Avenue from Atlantic Avenue to S.W. 2nd Street, except along SW 12th Avenue, where it extends south to SW 3rd Street. The applicable regulations set forth in Section 4.7, "Family/Workforce Housing" (in addition to applicable Land Development Regulations) shall apply to this district. [Amd. Ord. 06-14 4/1/14];
[Amd. Ord. 66-04 12/6/04]
(A)
Defined. The Southwest 10 th Street Overlay District is located between S.W. 10 th Street to the north and Reigle Avenue to the South and between Swinton Boulevard to the east and S.W. 2 nd Avenue, if it was extended to Reigle Avenue, to the west. The application regulations set forth in Section 4.7, "Family Workforce Housing" shall apply to the Southwest 10 th Street Overlay District in addition to other applicable Land Development Regulations.
[Amd. Ord. 66-04 12/6/04]
(A)
Defined. The Carver Estates Overlay District covers two areas shown on the map in Section 4.7.1c of the Land Development Regulations. The applicable regulations set forth in Section 4.7, "Family/Workforce Housing", shall apply to the Carver Estates Overlay District in addition to other applicable Land Development Regulations.
[Amd. Ord. 17-06 4/4/06]
(A)
Defined. The Infill Workforce Housing Area is located west of the Intracoastal Waterway and east of I-95 as shown on the map in Section 4.7.1(l) of the Land Development Regulations.
[Renumbered by Amd. Ord. 17-06 4/4/06]; [Amd. Ord. 68-04 1/4/05]
(A)
General. The Beach Property Owners Design Manual (Manual) was prepared for the single family and low density residential zoned properties, east of the Intracoastal Waterway, as defined below in subsections (B)(1) and (2). All development within the North Beach/Seagate and Ocean District Neighborhood Overlay Districts, shall be regulated according to the provisions of the Manual adopted herein and shall follow the standards for visual compatibility provided within the guidelines including regulations limiting height, width, mass, scale, materials, color, style, form, and square footage. The Beach Property Owners Design Manual, as amended, is adopted by reference as a part of this section. The Manual will be available to the public on the City of Delray Beach's website and in the Development Services Department. [Amd. Ord. 36-07 9/18/07]; [Amd. Ord. 68-04 1/4/05] (Ord. No. 08-19, § 2, 3-12-19)
(B)
Defined. [Amd. Ord. 68-04 1/4/05]
(1)
North Beach/Seagate Neighborhood Overlay District. The North Beach/Seagate Neighborhood Overlay District is hereby established as the area zoned Single Family Residential (R-1) Districts, including R-1-AA and R-1-AAA, located north of East Atlantic Avenue, south of George Bush Boulevard, east of the Intracoastal Waterway and west of North Ocean Boulevard (State Road A-1-A) together with the entire Seagate Neighborhood generally located south of Bucida Road, north of Lewis Cove, between the Intracoastal Waterway and south Ocean Boulevard (State Road A-1-A), less Lots 35 through 45, Block 5, of the plat of Seagate Extension. The regulations established in Section 4.4.3(E)(4), 4.4.3(F)(1), and 4.4.3(G)(1) shall apply to all parcels within the Overlay District, excluding those parcels located within a designated historic district or individually listed on the Local Register of Historic Places. [Amd. Ord. 68-04 1/4/05] (Ord. No. 08-19, § 2, 3-12-19)
(2)
Ocean Neighborhood Overlay District. The Ocean Neighborhood Overlay District is hereby established as the area located east of Ocean Boulevard (State Road A-1-A), zoned Single Family Residential (R-1) Districts, including R-1-A, R-1-AAA, and Low Density Residential (RL) District. The regulations established in Sections 4.4.3(E)(4), 4.4.3(F)(1), and 4.4.3(G)(1) shall apply to all parcels within the Overlay District, excluding those parcels located within a designated historic district or individually listed on the Local Register of Historic Places. [Amd. Ord. 68-04 1/4/05](Ord. No. 08-19, § 2, 3-12-19)
[Amd. Ord. 8-07 3/20/07]
(A)
Defined. The Four Corners Overlay District is hereby established as the area located at the four corners of the intersection of West Atlantic Avenue and Military Trail. The Overlay District includes both GC (General Commercial) and PC (Planned Commercial) zoned properties. All development within the overlay district is subject to special provisions included within the GC and PC zoning district regulations. [Amd. Ord. 8-07 3/20/07]
[Amd. Ord. 10-07 3/20/07]
(A)
Defined. The I-95/CSX Railroad Corridor Overlay District is located east of the CSX Railroad, west of I-95, south of the E-4 Canal, and north of the Historic Depot property, as shown on the map in Section 4.7.1(t) of the Land Development Regulations. The applicable regulations set forth in Section 4.7, "Family/Workforce Housing", shall apply to the I-95/CSX Railroad Corridor Overlay District in addition to other applicable Land Development Regulations. [Amd. Ord. 10-07 3/20/07]
[Amd. Ord. 24-08 6/17/08]
(A)
Defined. The Lake Ida Neighborhood Overlay District is hereby established as the area bounded by NW 22nd Street on the north, Swinton Avenue on the east, Lake Ida Road on the south, and Interstate 95 on the west for the properties that are zoned R-1-AA (Single Family Residential), R-1-AAA (Single Family Residential), and R-1-AAAB (Single Family residential). All development within the overlay district is subject to the special provisions included within the Single Family Residential (R-1) Districts.
[Amd. Ord. 38-09 8/18/09]
(A)
Defined. The Silver Terrace Courtyards Overlay District is located on the west side of South Federal Highway, approximately 320 feet south of SE 10th Street and north of the Plaza at Delray, as shown on the map in Section 4.7.1(v) of the Land Development Regulations. The applicable regulations set forth in Section 4.7, "Family/Workforce Housing", shall apply to the Silver Terrace Courtyards Overlay District in addition to other applicable Land Development Regulations.
[Amd. Ord. 09-11 4/5/11]
(A)
Defined. The Medical Arts Overlay District is hereby established to include the following area:
The North half (N ½) of the Northeast quarter (NE ¼) of Section 26, Township 46 South, Range 42 East, lying South of the Linton Boulevard road right-of-way, East of the LWDD E-3 Canal right-of way, and West of the Military Trail road right-of-way; together with Parcel 1, Delray Town Center, a Subdivision in Palm Beach County, Florida as per the Plat thereof recorded in Plat Book 65, Page 189, of the Public Records of Palm Beach County; together with Parcel A, Delray Outpatient Properties Plat, a Subdivision in Palm Beach County, Florida as per the Plat thereof recorded in Plat Book 99, Page 197, of the Public Records of Palm Beach County; together with the Northwest quarter (NW ¼) of the Northwest quarter (NW ¼), of Section 25, Township 46 South, Range 42 East, lying South of the Linton Boulevard road right-of-way, and East of the Military Trail road right-of-way, less the South half (S ½) of the Southeast quarter (SE ¼) of the Northwest Quarter (NW ¼) of the Northwest Quarter (NW ¼).
(B)
Map of overlay district.
[Amd. Ord. 09-11, 4/5/11]
[Amd. Ord. 21-12 8/7/12]
(A)
Defined. The Lintco Development Overlay District is hereby established to include the area on the north side of Linton Boulevard, west of SW 4th Avenue as shown on the Map in Section 4.5.19 (B), below:
(B)
Map of overlay district.
[Amd. Ord. 22-12 8/7/12]
(A)
Defined. The Waterford Overlay District is hereby established to include the following area:
Parcel "B" as set forth on the plat of Waterford Park, recorded in Plat Book 91 at Pages 119 and 120 of the public records of Palm Beach County, Florida.
(B)
Map of overlay district.
(A)
Defined. The Linton Commons Overlay District is hereby established as the area located at the southwest corner of Linton Boulevard and SW 4th Avenue and made up of Parcel A, Parcel B and Parcel C of the New Century Commons Plat (Plat Book 65. Page 21). The overlay district includes PC (Planned Commercial) zoned properties. All development within the overlay district is subject to special provisions included within the PC zoning district regulations. (Ord. No. 01-21, § 4, 1-19-21)
(A)
Defined. The Flo Delray Overlay District is hereby established as the 4.86-acre of land bounded by the Marketplace of Delray on the south and east, High Point of Delray West on the north and west, and the abutting Lake Worth Drainage District's L-33 on the north, being more specifically identified as with the West ½ of the Northwest ¼ of the Northeast ¼ of the Southeast ¼ of Section 14, Township 46 South, Range 42 east, Palm Beach County. The overlay district is zoned Medium Density Residential (RM). All development within the overlay district is subject to RM zoning district regulations. (Ord. No. 39-23, § 4, 12-5-23)
(Ord. No. 39-23, § 4, 12-5-23)