SUPPLEMENTAL DISTRICT REGULATIONS
The supplemental district regulations contained in this Article apply to all zone districts in an equal manner unless specific provision to the contrary is made herein. In some instances, modifications of these supplemental regulations are provided for within subsection (G) of the individual zone districts.
(A)
Purpose. The purpose of this Section is to provide for adequate distance between structures to allow for light, air, and open space; and to provide for aesthetically pleasing design relationships among buildings which are constructed within a townhouse, apartment, or condominium residential development.
(B)
Application. The minimum horizontal distance(s) between any two residential buildings (referred to as Building A and Building B) shall vary according to the length and height of such buildings. Such minimum distances shall be the distance required under the following formula:
(Ord. No. 02-19, § 3, 4-16-19)
(Deleted in its entirety from "Supplementary District Regulations" and relocated to "Infrastructure and Public Property", Section 6.1.4 (B). [Amd. Ord. 12-99 3/16/99]
The following special district boundary treatments are to be minimums. If other treatments are required, the requirements which provide for the greatest separation and most buffering shall apply.
(A)
Commercial zoning adjacent to residential zoning or zoning districts with a 35-foot height limitation. [Amd. Ord. 21-04 5/4/04]
(1)
Properties subject to the development standards of the Central Business District (CBD) shall comply with the following: [Amd. Ord. 64-04 11/16/04]; [Amd. Ord. 21-04 5/4/04]
(a)
Where the rear or side of a property directly abuts a zoning district with a height limitation of 35 feet without any division or separation between them of 30 feet or more, such as a street, alley, railroad, waterway, park, or other public open space, the following shall apply: [Amd. Ord. 21-04 5/4/04]
(i)
For buildings or portion of the buildings three stories or less in height, a ten-foot minimum building setback from the property line shall be provided. [Amd. Ord. 03-15 02/24/2015]; [Amd. Ord. 21-04 5/4/04]
(ii)
For buildings above three stories in height, at the top of the third story, minimum side and rear building setbacks of 30 feet shall be provided from the property line for the portion of the building that is over three stories in height. [Amd. Ord. 03-15 02/24/2015]; [Amd. Ord. 21-04 5/4/04]
(iii)
A solid finished masonry wall six feet in height, or a continuous hedge at least four and one-half feet in height at the time of installation, shall be located inside and adjacent to the portion of the boundary line of the CBD zoned property which directly abuts the residentially zoned property. Walkways and other pedestrian or bicycle connections shall be placed through the wall or hedge if they provide links identified on any adopted bicycle and pedestrian master plan or if SPRAB determines they would promote desirable connectivity between properties. [Amd. Ord. 03-15 02/24/2015]; [Amd. Ord. 21-04 5/4/04]
(2)
All other commercially zoned properties shall comply with the following: [Amd. Ord. 21-04 5/4/04]
(a)
Where the rear or side of commercially zoned property directly abuts residentially zoned property without any division or separation between them, such as a street, alley, railroad, waterway, park, or other public open space, the commercially zoned property shall provide a ten-foot building setback from the property line located adjacent to the residentially zoned property. In addition, either a solid finished masonry wall six feet in height, or a continuous hedge at least four and one-half feet in height at the time of installation, shall be located inside and adjacent to the portion of the boundary line of the commercially zoned property which directly abuts the residentially zoned property. If a wall is used, it shall have only those openings as required by other city codes to meet hurricane or severe storm construction standards. No walkways or other pedestrian ways shall be located through the wall or hedge. [Amd. Ord. 21-04 5/4/04]
(b)
Where the rear or side of commercially zoned property does not directly abut residentially zoned property but is separated from it by an alley, the commercially zoned property shall provide a ten-foot building setback from the property line located adjacent to the separator. [Amd. Ord. 21-04 5/4/04]
(B)
Industrial zoning adjacent to residential zoning.
(1)
Where the rear or side of industrially zoned property directly abuts residentially zoned property without any division or separator between them, such as a street, alley, railroad, waterway, park, or other public open space, the industrially zoned property shall provide a 60-foot building setback from the property line located adjacent to the residentially zoned property.
(a)
In addition, either a solid finished masonry wall six feet in height, or a continuous hedge at least four and one-half feet in height at the time of installation, shall be located inside and adjacent to that portion of the boundary line of the industrially zoned property, which directly abuts the residentially zoned property. If a wall is used, it shall have only those openings as required by other city codes to meet hurricane or severe storm construction standards. No walkways or other pedestrian ways shall be located through the wall or hedge.
(b)
Within the rear or side 60-foot building setback, parking and storage shall be allowed, provided such storage does not exceed the height of the barrier.
(2)
Where the rear or side of industrially zoned property does not directly abut residentially zoned property, but is separated from it by a street, alley, railroad, waterway, park, or other public open space, the industrially zoned property shall provide a 50-foot building setback from the property line located adjacent to the separator.
(a)
In addition, either a solid finished masonry wall six feet in height, or a continuous hedge at least four and one-half feet in height at the time of installation, shall be located inside and adjacent to that portion of the boundary line of the industrially zoned property, which directly abuts the residentially zoned property. If a wall is used, it shall have only those openings as required by other city codes to meet hurricane or severe storm construction standards. No walkways or other pedestrian ways shall be located through the wall or hedge.
(b)
A driveway of not more than 24 feet in width may be allowed through the wall or hedge even if the industrially zoned property has access from some other right-of-way or street.
(c)
Within the rear or side 50-foot building setback, parking and storage shall be allowed, provided such storage does not exceed the height of the barrier.
(d)
Where the rear of the industrially zoned property directly abuts the combined rights-of-way of I-95 and the railroad, or the I-95 right-of-way, the wall or hedge will not be necessary; but the landscaping requirements as described in subsection (3) below must be followed.
(3)
Where the rear or side of industrially zoned property does not directly abut a residentially zoned property, but is separated from it by the combined I-95 right-of-way and the railroad right-of-way, or the I-95 right-of-way, the industrially zoned property shall provide a 50-foot building setback from the property line located adjacent to the right-of-way line.
(a)
In addition, the following method of screening shall be provided:
(i)
If the Site Plan Review and Appearance Board determines that the architectural elevation facing I-95 and the Railroad right-of-way is an aesthetic asset to the corridor, the perimeter landscaping shall consist of the following:
Shade trees 30 feet 'on center' and a continuous hedge to be maintained at a minimum height of four feet. Shade trees shall be a minimum of 12 feet in height with a six-foot spread at the time of installation. Hedge materials shall be a minimum of two feet in height at time of installation.
(ii)
If the SPRAB determines that the architectural elevation facing I-95 and the Railroad right-of-way lends itself more to the industrial function of the building, and does not provide an aesthetic asset to the corridor, the perimeter landscaping shall consist of the following:
A 15 foot deep buffer adjacent to I-95 and the Railroad. Within this area, a double staggered row of shade trees shall be planted 20 feet 'on center' within the row. In addition, a hedge must be planted adjacent to the rear property line to be maintained at a six-foot height. Shade trees must be a minimum of 12 feet in height at the time of planting and hedge material must be a minimum of four feet in height. [Amd. Ord. 17-91 2/26/91]
(4)
Where the front of industrially zoned property does not directly abut a residentially zoned property, but is separated from it by a street, alley, railroad, waterway, park, or other public open space, industrially zoned property shall provide a 30-foot building setback from the property line located adjacent to the separator. This front 30-foot building setback shall be landscaped, and no paving shall be permitted in the landscaped setback, except for permissible driveways or walkways leading to a structure.
(C)
POC zoning adjacent to residential zoning. In no event shall a building setback be less than then 25 feet on POC property which abuts residentially zoned property. Further, the total setback area shall be landscaped except for paths for pedestrian and vehicular access to the site.
(D)
MIC zoning adjacent to residential zoning. When a parcel of land zoned MIC abuts a parcel of land zoned residential without any division or separator between them, such as a street, railway, waterway, park, or other public open space, but excluding an alley, the following shall be the minimum setbacks on the abutting property line of the MIC land:
(1)
Front—30 feet, with a minimum landscape buffer of 15 feet.
(2)
Side and Rear—50 feet, with a minimum landscape buffer of 15 feet.
(E)
Subsection deleted in its entirety. [Amd. Ord. 53-94 6/21/94]
(A)
Relationship to travelways. Walls, fences, access gates, hedges, or similar structures shall not be erected in the public right-of-way nor close to the public right-of-way in a manner which will obstruct visibility or otherwise interfere with the proper flow of vehicular traffic, pedestrian safety, or the provision of services. Where deemed to create a sight obstruction, fences, hedges and walls shall be maintained at a height not exceeding three feet. On corner lots and at points of access, additional restrictions requiring provision of adequate sight triangles are provided in Section 4.6.14(A). [Amd. Ord. 7-97 2/18/97] (Ord. No. 11-20, § 2, 12-8-20)
(B)
Dangerous features. No walls, fences, or hedges shall contain any substance such as, but not limited to, barbs, broken glass, nails, or spikes. No fence shall be electrically charged, unless designed and approved pursuant to Subsection (H). Two feet of barbed wire may be placed upon a six foot or higher fence in nonresidential zone districts. [Amd. Ord. 7-97 2/18/97] (Ord. No. 11-16, § 1, 6-7-16)
(C)
Height restrictions. Walls, fences, or hedges located in a required front yard or street side yard shall not exceed six feet in height. Walls, fences, or hedges located in a required interior side or rear yard shall not exceed eight feet in height. Such height is further regulated by subsection (A), above. For the purpose of this section, height is to be measured from the undisturbed (natural) grade of the ground adjacent to the exterior of the fence, wall or hedge. [Amd. Ord. 7-97 2/18/97] (Ord. No. 11-16, § 1, 6-7-16)
(D)
Fence types. Chain link fencing located in the front and street side yards shall be black or green vinyl coated, unless screened by hedging which is to be maintained at the full height of the fence. Fencing that is greater than 75 percent opaque and located in front and street side yards shall also be screened by hedging which is to be maintained at the full height of the fence. [Amd. Ord. 7-97 2/18/97]
(E)
Masonry walls. Masonry walls located in the front and street side yards shall be screened by landscape material that is to be maintained at a minimum height equal to half of the height of the wall. Landscape materials must be of the type that will reach the required height within two years of planting. [Amd. Ord. 7-97 2/18/97]
(F)
Setbacks. Fences and walls which are required to be landscaped shall be set back a minimum of two feet from the property line to provide adequate area for vegetation to mature. Additional restrictions with respect to setbacks are provided in Section 4.6.16(3)(a). [Amd. Ord. 7-97 2/18/97] (Ord. No. 11-16, § 1, 6-7-16)
(G)
Landscaping. All required landscape materials shall be as approved by the City's Senior Landscape Planner and shall comply with applicable provisions of Section 4.4.16. [Amd. Ord. 7-97 2/18/97] (Ord. No. 11-16, § 1, 6-7-16)
(H)
Electrified fences. Electrified fences are permitted in accordance with the regulations listed in this Subsection. (Ord. No. 11-16, § 1, 6-7-16)
(1)
Location. Electrified fences are permitted where outdoor storage is approved as an accessory use within the Industrial (I) zoning district, and Special Activities District (SAD), when outdoor storage is associated with an industrial use or activity and is specified in the approved ordinance creating the SAD. (Ord. No. 11-16, § 1, 6-7-16)
(2)
Electrification. (Ord. No. 11-16, § 1, 6-7-16)
(a)
The energizer for electric fences must be driven by a commercial storage battery not to exceed 12 volts DC. (Ord. No. 11-16, § 1, 6-7-16)
(b)
The electric charge produced by the fence upon contact shall not exceed energizer characteristics set forth in paragraph 22.108 and depicted in Figure 102 of International Electro Technical Commission (IEC) Standard No. 60335-2-76. (Ord. No. 11-16, § 1, 6-7-16)
(3)
Installation requirements. (Ord. No. 11-16, § 1, 6-7-16)
(a)
No electrified fence shall be installed within the front or side-street setback areas as designated for the zoning district where the fence will be located. (Ord. No. 11-16, § 1, 6-7-16)
(b)
Electrified fences shall be completely surrounded by a non-electrified perimeter fence or wall which measures at least six feet in height and complies with the maximum height setbacks in Subsection 4.6.5(C). (Ord. No. 11-16, § 1, 6-7-16)
(c)
The electrified fence shall be set back from the rear or side interior property lines as follows: (Ord. No. 11-16, § 1, 6-7-16)
(i)
At least one foot when surrounded by a perimeter wall or fence; or, (Ord. No. 11-16, § 1, 6-7-16)
(ii)
At least two feet when surrounded by a perimeter wall or fence that is less than 100 percent opaque and adjacent to residentially zoned property or property containing a residential use. (Ord. No. 11-16, § 1, 6-7-16)
(d)
Electrified fences shall measure at least two feet higher than the surrounding nonelectrical fence or wall and in no case measure more than 10 feet in height from grade. (Ord. No. 11-16, § 1, 6-7-16)
(e)
Electrified entry gates may be attached to the inside of the main perimeter entry gate with a minimum separation of three inches between the two gates. (Ord. No. 11-16, § 1, 6-7-16)
(4)
Signage requirements. (Ord. No. 11-16, § 1, 6-7-16)
(a)
Electrified fences shall be clearly identified with warning signs measuring a minimum of one and one half square feet that read: "Warning-Electric Fence" in English, Spanish, and Creole. (Ord. No. 11-16, § 1, 6-7-16)
(b)
Signs shall be placed on both the exterior and interior of the fence. (Ord. No. 11-16, § 1, 6-7-16)
(c)
Signs shall be spaced no greater than 30 feet apart and mounted at least five feet above grade directly onto the fence. (Ord. No. 11-16, § 1, 6-7-16)
(d)
Sign symbols and lettering must contrast with the sign background color. Sign letters shall be a maximum of four inches in height. (Ord. No. 11-16, § 1, 6-7-16)
(5)
Permitting procedure. (Ord. No. 11-16, § 1, 6-7-16)
(a)
Approval of a site plan illustrating the fence location and issuance of a building permit for the fence and electrical components shall be obtained prior to the installation of an electric fence. (Ord. No. 11-16, § 1, 6-7-16)
(b)
Site plan and building permit review shall include approval by the Police Chief and the Fire Marshal or their designee. (Ord. No. 11-16, § 1, 6-7-16)
(c)
Electrified fences shall also be governed and regulated under the City's Alarm System regulations of Chapter 112 of the Code of Ordinances. Subsequent to approval of a site .4.1plan and issuance of a building permit, electrified fences shall be subject to the same registration process and fees as Alarm Systems. (Ord. No. 11-16, § 1, 6-7-16)
(6)
Emergency shut-off. An emergency shut-off switch, for the purpose of de-energizing the electrified fence, shall be accessible to all emergency personnel outside the perimeter of the fence to allow for emergency access. Control and access shall be of a type, location, and marking specified and approved by both the Police Chief and Fire Marshal, or their designees, and included in any site plans submitted to the Planning and Zoning Department. (Ord. No. 11-16, § 1, 6-7-16)
(A)
Intent.
(1)
All commercial and industrial uses shall conduct within a completely enclosed building rather than outside regardless of the zoning district. However, certain aspects of a use may be conducted outside and such aspects are identified in (B) below. [Amd. Ord 27-08 6/17/08]; [Amd. Ord 60-93 10/12/93]
(2)
Certain conditional uses that are allowed within commercial, industrial, and mixed use districts can be characterized as outside uses. Such operations may be conducted outside when it is specifically determined through the conditional use process that the outside aspects of the use are appropriate. Conditions may be applied to mitigate visual and other impacts. [Amd. Ord. 60-93 10/12/93]
(3)
Commercial and industrial uses may be allowed outside on a temporary basis for special events pursuant to Section 2.4.6(F). [Amd. Ord 27-08 6/17/08]
(B)
Allowable outside usage. The following aspects of a use may be conducted outside, pursuant to the restrictions listed in Section 4.6.6(C) below. [Amd. Ord. 60-93 10/12/93]
(1)
Off-street parking.
(2)
Refuse and service areas. [Amd. Ord. 60-93 10/12/93]
(3)
Storage of nursery plants.
(4)
Fruit and vegetable displays.
(5)
Signage.
(6)
Outside dining areas. [Amd. Ord. 60-93 10/12/93]
(7)
Loading and unloading of materials. [Amd. Ord. 60-93 10/12/93]
(8)
Outside storage where specifically permitted within a zoning district. [Amd. Ord. 60-93 10/12/93]
(9)
Activities associated with outside conditional uses, pursuant to (A)(2) above. [Amd. Ord. 60-93 10/12/93]
(10)
Retail displays. [Amd. Ord. 60-93 10/12/93]
(C)
Restrictions on outside usage.
(1)
Dumpsters, recycling containers, and similar service areas must be enclosed on three sides and have vision obscuring gates on the fourth side, unless such areas are not visible from any adjacent public right-of-way. [Amd. Ord. 60-93 10/12/93]
(2)
Outside storage. Materials and equipment stored outside must be screened from view from adjacent public rights-of-way in a manner approved by the Site Plan Review and Appearance Board. Outside storage may not be located within a required setback area. It is not intended that sales or customer service be conducted in an area designated for storage. [Amd. Ord. 60-93 10/12/93]
(3)
Outdoor retail displays. [Amd. Ord. 60-93 10/12/93]
(a)
Outdoor retail displays must be located adjacent to the building containing the main use, on property owned or leased by the business conducting the main use. No display is permitted on public rights-of-way, except when part of an approved special event. [Amd. Ord. 60-93 10/12/93]
(b)
Outdoor display areas may not exceed ten percent of the square footage of the interior of the building which contains the main use. [Amd. Ord. 60-93 10/12/93]
(c)
When an outside display of plants is associated with nurseries and garden shops, one-half of the ground area devoted to such use shall be considered as "floor area" for the purposes of calculating and providing on-site parking. [Amd. Ord. 60-93 10/12/93]
(d)
The Fire Marshal may require the removal or modification of outside displays upon written order, when such displays prevent or impede adequate ingress and egress for emergency purposes. [Amd. Ord. 60-93 10/12/93]
(4)
The City Manager shall have authority to grant administrative relief from LDR Section 4.6.6(C)(3) provided that: [Amd. Ord. 76-94 10/18/94]
(a)
The outside display areas are part of an approved special event. [Amd. Ord. 76-94 10/18/94]
(b)
The administrative relief shall not exceed ten calendar days in duration. [Amd. Ord. 76-94 10/18/94]
[Section Repealed and New Section Enacted by Ord. 78-06 1/02/07; Ord. 14-04 6/22/04]
(A)
Purpose. The purposes of these sign regulations are: to encourage the effective use of signs as a means of communications in the City; to maintain and enhance the aesthetic environment and the City's ability to attract sources of economic development and growth; to improve pedestrian and traffic safety; to minimize the possible adverse effect of signs on nearby public and private property; to foster the integration of signage with architectural and landscape designs; to streamline the approval process by requiring master signage plans; and to enable the fair and consistent enforcement of these sign regulations.
(1)
Communication. Signs should not deny other persons or groups the use of sight lines on public rights-of-way, should not obscure important public messages, and should not overwhelm readers with too many messages. Signs can and should help individuals to identify and understand the jurisdiction and the character of its sub-areas.
(2)
Preservation of community's beauty. The City of Delray Beach which includes a beach resort community as well as major office and industrial parks relies heavily on its natural surroundings and beautification efforts to retain its economic advantage. This concern is reflected by actively regulating the appearance and design of signs.
(3)
Property value protection. Signs should not create a nuisance to the occupancy or use of other properties as a result of their size, height, brightness, or movement. They should be in harmony with buildings, the neighborhood, and other conforming signs in the area.
(B)
Applicability. It shall be unlawful for any persons to post, display, change, or erect a nonexempt sign or a sign structure, that requires a permit, without first having obtained a permit therefor. Signs or sign structures erected without a valid permit shall be deemed in violation and it shall be mandatory to obtain a permit, based on this Section, or else remove the sign or sign structure. Signs erected, under a valid permit, prior to the effective date of this ordinance, which have since become nonconforming shall be allowed to remain in accordance with the time limitation and structure requirements set forth in these LDR's. All signs not expressly allowed by these LDR's are prohibited.
(C)
Procedures.
(1)
Issuance of permits, validity and renewal. Permit applications shall be reviewed by the Chief Building Official or his/her designee within 30 days of submission of the permit application. Upon satisfactory compliance with the minimum submission requirements of the LDRs and a determination that the proposed sign meets all applicable standards set forth in the LDRs, the Chief Building Official, or his/her designee, shall cause a sign permit to be issued to the applicant.
The permit shall be valid for a period of 180 days during which period the sign may be erected; however, the Chief Building Official, or his/her designee, for good cause shown and upon payment of 50 percent of the original application fee, may renew the permit for an additional 90 day increment provided that there have not been enacted, in the 180 day period, standards of which the permit would be in violation. Permits shall be required for all signs not listed within this code as either exempt or prohibited.
(2)
Permits for individual signs. Permits for signs shall be on a form as promulgated by the Chief Building Official.
(a)
Minimum submission requirements. The application form and associated submission materials shall include the following:
1.
The type of sign and/or sign structure as set forth in the LDRs.
2.
The street address of the property upon which the sign and/or sign structure is to be located along with identification of where on said property the sign will be located. If there is no street address another suitable method of identifying the location shall be provided.
3.
The area per sign face and the aggregate area of the sign and/or sign structure.
4.
The name and address of the owner or other person in control or possession of the real property upon which the sign or sign structure is to be located.
5.
Written consent of the owner, or his designated agent, granting permission for the construction, operation, maintenance, or displaying of the sign and/or sign structure.
6.
Two copies of a blueprint, sketch, blue line print, or similar presentation, drawn to scale and dimensioned, showing elevations of the sign as proposed and its relationship to other existing or proposed signs or sign structures in the area. In the case of a free-standing sign, the representation shall include a sketch site plan showing the location of the sign.
7.
Appropriate exhibits showing the proposed location of the sign with respect to nearby structures and vegetation.
8.
The seal of a state registered engineer or architect shall be affixed to drawings of signs and/or sign structures where the sign face is in excess of 32 square feet certifying that it is designed in accordance with wind load requirements of the Florida Building Code.
A sign contractor shall provide a signed certificate stating that wind loading to withstand a pressure of 50 pounds per square foot when an application for signs less than or equal to 32 square feet in area is submitted.
(D)
Aesthetic qualifications.
(1)
Applicability. The following subsection describes basic aesthetic qualifications which apply to signs.
(2)
Basis. The aesthetic quality of a building, or of an entire neighborhood, is materially affected by achieving visual harmony of the sign on or about a structure as it relates to the architecture or the building or the adjacent surroundings. In addition to the limitations on signs imposed in Subsections (E) and (K), the following aesthetic considerations must be met.
(a)
Garishness. The overall effect of the lettering, configuration or color of a sign shall not be garish. "Garish" signs are those that are too bright or gaudy, showy, glaring, and/or cheaply brilliant or involving excessive ornamentation. Garish signs are not in harmony with and are not compatible with the building or adjacent surroundings.
(b)
Scale, design, and location. (Ord. No. 22-18, § 2, 11-27-18)
1.
Signs shall be appropriate in size, scale, and design for the neighborhood or streetscape where it is to be located. (Ord. No. 22-18, § 2, 11-27-18)
2.
Signs placed on structures shall be proportionate in size and scale to the building facade, designed consistently with the building architecture, and positioned harmoniously with building features; architectural features shall not be provided solely for the purpose of accommodating signage, but shall relate to building location, function, and use. (Ord. No. 22-18, § 2, 11-27-18)
(c)
Quality. All signs shall have a professional appearance that enhances the visual aesthetics of the area.
(E)
Sign design standards. The following subsections describe basic standards that apply to signs. The application of these standards to specific types of signs and their location in specific zoning districts is set forth in Table 4.6.7(A), Sign standards per zoning district. (Ord. No. 53-20, § 2, 3-2-21)
(1)
Types of signs.
(a)
Free-standing sign. A free-standing sign is not affixed to any other structure and is limited to no more than two faces. It may be either a pole sign or a monument sign. All signs erected on a pole shall contain a pole cover. All freestanding signs shall contain the street number.
(b)
Projecting sign. A sign affixed to a structure and which extends at a right angle from the building. A projecting sign shall not have more than two sign faces.
(c)
Under canopy sign. A sign hung from a canopy or roof of a walkway. It may be rigid or it may swing. Such a sign may not have more than two sign faces.
(d)
Wall sign. A wall sign may be flush mounted or hand painted. Such a sign may be applied to a canopy/awning, mansard, or building face.
(2)
Sign Measurements.[9] (Ord. No. 53-20, § 2, 3-2-21)
(a)
Area. Sign area is measured in square feet or square inches inclusive of each sign face and side. (Ord. No. 53-20, § 2, 3-2-21)
1.
The sign face includes any background material, panel, trim, color, and direct or self-illumination used that differentiates the sign from the building, structure, backdrop surface, or object upon which, or against which, it is placed. When there is no differentiation between the sign and the building or structure, the sign area shall be determined using a rectangle just large enough to include all lettering, illustrations, ornamentation, symbols, or logos. (Ord. No. 53-20, § 2, 3-2-21)
2.
A sign structure, such as a pole or monument base, shall not be included in the sign area measurement provided that no lettering, illustrations, ornamentation, symbols, or logos are displayed on, or designed as part of, the sign. (Ord. No. 53-20, § 2, 3-2-21)
(b)
Height. Height is the vertical distance measured from the highest point of the sign to the grade at the base of the sign. (Ord. No. 53-20, § 2, 3-2-21)
(c)
Setback. Setback is the distance measured from the closest portion of the sign to the ultimate right-of-way. (Ord. No. 53-20, § 2, 3-2-21)
(3)
Location requirements. Standard sign location requirements are set forth in Table 4.6.7(A). The following supplemental location standards apply per sign type. (Ord. No. 53-20, § 2, 3-2-21)
(a)
Free-standing signs. (Ord. No. 53-20, § 2, 3-2-21)
1.
Free-standing signs shall have a setback of ten feet or the minimum special setback required per Section 4.3.4(H)(6), whichever is greater. (Ord. No. 53-20, § 2, 3-2-21)
2.
For properties required to provide a setback of ten feet, free-standing signs may be partially or entirely located within the setback, subject to the following criteria: (Ord. No. 53-20, § 2, 3-2-21)
a.
The sign height is a maximum of seven feet; and (Ord. No. 53-20, § 2, 3-2-21)
b.
The sign area for that portion of the sign within the setback is a maximum of 20 square feet and the total sign area is a maximum of 40 square feet. (Ord. No. 53-20, § 2, 3-2-21)
3.
For properties required to provide special setback areas, pursuant to Section 4.3.4(H)(6), free-standing signs may be partially or entirely located within the setback, subject to the following criteria: (Ord. No. 53-20, § 2, 3-2-21)
a.
Signs that are set back ten to 20 feet are allowed a maximum area of 40 square feet and a maximum height of seven feet. (Ord. No. 53-20, § 2, 3-2-21)
b.
Signs that are set back 20 to 30 feet are allowed a maximum area of 96 square feet and a maximum height of 14 feet. (Ord. No. 53-20, § 2, 3-2-21)
(b)
Wall signs and under canopy signs. (Ord. No. 53-20, § 2, 3-2-21)
1.
Wall signs and under canopy signs may be located within the setback, including special setback areas pursuant to Section 4.3.4(H)(6); or (Ord. No. 53-20, § 2, 3-2-21)
2.
Wall signs and under canopy signs within the CBD or OSSHAD with CBD Overlay zoning districts may be located partially or entirely in the public right-of-way provided that the building or arcade was legally constructed with smaller setbacks or without setbacks. (Ord. No. 53-20, § 2, 3-2-21)
(c)
Projecting signs. (Ord. No. 53-20, § 2, 3-2-21)
1.
Projecting signs may be located within the setback, including special setback areas pursuant to Section 4.3.4(H)(6); or (Ord. No. 53-20, § 2, 3-2-21)
2.
Projecting signs within the CBD or OSSHAD with CBD Overlay zoning districts may be located partially or entirely in the public right-of-way provided that the building or arcade was legally constructed with smaller setbacks or without setbacks, subject to the following: (Ord. No. 53-20, § 2, 3-2-21)
a.
Projecting signs that extend into the right-of-way more than two feet from the face of the building or contain more than five square feet are subject to approval by either the Site Plan Review and Appearance Board or Historic Preservation Board. (Ord. No. 53-20, § 2, 3-2-21)
b.
Projecting signs may extend from the face of the building located under an arcade. Projecting signs shall not extend from the exterior face of an arcade. (Ord. No. 53-20, § 2, 3-2-21)
(4)
Obstructions. Signs shall not obscure or be obscured by another sign, structure, or existing vegetation. (Ord. No. 53-20, § 2, 3-2-21)
(5)
Safety. Signs shall not create a hazard to automotive or pedestrian traffic. (Ord. No. 53-20, § 2, 3-2-21)
(6)
Illumination. (Ord. No. 53-20, § 2, 3-2-21)
(a)
Signs may be illuminated directly or indirectly unless specifically prohibited. (Ord. No. 53-20, § 2, 3-2-21)
(b)
In residential zoning districts, all sign illumination shall provide cutoff luminaire. (Ord. No. 53-20, § 2, 3-2-21)
(7)
Design prohibitions. (Ord. No. 53-20, § 2, 3-2-21)
(a)
Intermittent lighting, animation, moving or rotating signs. A sign shall not involve intermittent lighting, animation, motion or rotation of any part of a sign structure or display; except for governmental traffic signals, traffic devices and traffic signs as required by law. (Ord. No. 53-20, § 2, 3-2-21)
(b)
Noise producing signs. A sign shall not produce noise or sounds. (Ord. No. 53-20, § 2, 3-2-21)
(c)
Obscene signage. A sign shall not exhibit thereon any lewd, lascivious, or obscene, character, or illustration. (Ord. No. 53-20, § 2, 3-2-21)
(d)
Restrictions as to functions. The use of a sign may be restricted to functions as set forth in Table 4.6.7(A), Sign standards per zoning district, under the column of "Type of Sign." (Ord. No. 53-20, § 2, 3-2-21)
(e)
Smoke or odor producing signs. A sign shall not produce or emit smoke, vapor, particles, or odor. (Ord. No. 53-20, § 2, 3-2-21)
(8)
Agreement required. When a sign requires a permit and is located within an easement or right-of-way, an agreement in a form acceptable to the City Attorney shall be executed between the property owner and the City. The agreement shall be executed by the City Manager, or their designee. A performance bond or acceptable substitute guarantee may be required. (Ord. No. 53-20, § 2, 3-2-21)
(9)
Sign standards per zoning district. Table 4.6.7(A), Sign standards per zoning district, establishes the standards for various types of signs per zoning district. (Ord. No. 53-20, § 2, 3-2-21)
(Ord. No. 53-20, § 2, 3-2-21; Ord. No. 23-22, § 12, 8-16-22)
(F)
Signs requiring permits.
(1)
General. All signs, other than those exempted by Subsection (H) or prohibited by Subsection (J), must obtain a sign permit. Applications for sign permits shall be submitted and processed pursuant to these LDRs. Sign permits shall be issued by the Development Services Department under the direction of the Director for the following: (Ord. No. 41-22, § 3, 1-17-23)
(a)
Master and blanket sign program signs. Individual signs being permitted under the provisions of an approved Master Sign Program or Blanket Program.
(b)
Signs meeting standards. Individual signs which conform in all respects to the provisions of Subsection (E) and (K) of this Section.
(c)
Special purpose signs. Which comply with the requirements of Subsection (F)(3).
(2)
Master sign and blanket sign programs.
(a)
Blanket sign program. A Blanket Sign Program may be required for a commercial property establishing the font, color, size and locations of signs on a multiple tenant building. A Blanket Sign Program shall be approved by the Site Plan Review and Appearance Board or the Historic Preservation Board if the project is in a historic district or historically designated site. After approval of a Blanket Sign Program, individual signs consistent therewith shall be administratively approved.
(b)
Master sign program. A Master Sign Program is to be used when the development of a project is of such a scale or character that the normal application of the design and/or aesthetic standards of Subsections (D) and (E), respectively, will not result in an effective sign program and signing more permissive than said standards is necessary. Approval of a Master Sign Program may include the automatic granting of waivers and/or adjustments to the provisions of Subsections (D) and (E) provided that the intent of the sign code is maintained and the character of the community and neighborhood is not diminished. A Master Sign Program shall be approved by the Site Plan Review and Appearance Board or if the project is in a historic district or historically designated site, by the Historic Preservation Board. After approval of a Master Sign Program, individual signs consistent therewith shall be administratively approved.
(c)
Nothing contained herein shall prevent diversity and creativity of individual signs in the Master Sign Program.
(3)
Special purpose signs and signing. Permits for the following signs may be issued administratively provided that the provisions contained herein are complied with.
(a)
Gasoline pricing signs. Signs may advertise the price of gasoline subject to the following restrictions:
1.
Not more than 12 square feet per sign face.
2.
If free standing, it shall not exceed five feet in sign height.
3.
If a part of a permanent free standing sign, the price sign shall be included in the area of the permanent sign.
4.
One sign is permitted per frontage with a maximum of two signs per site.
5.
Signs placed on pumps shall not exceed three square feet per sign face nor a total of six square feet per sign.
(b)
Grand opening banner. One banner may be placed on the building of a newly opened business pursuant to the following:
1.
Display is limited to four weeks.
2.
The banner shall not exceed an area of 50 square feet.
3.
The banner may not be more than 15 feet above the grade, and must be placed on the building of the business, in the front of the business.
4.
Banners shall be made of color fast material.
(c)
Historic signing. Signs which are building mounted or free-standing which provide information of historic value. Said signing shall not exceed six feet above grade when free-standing and shall not exceed three square feet in area in any circumstance. Such signing shall not be permitted until approval has been gained from the Historic Preservation Board.
1.
Maintenance of nonconforming nostalgic signs.
(i)
Signs that have an historic or nostalgic appeal, and constitute artistic expression, and not solely advertising may be exempted from the removal requirements if a recommendation by the Historic Preservation Board is approved by the City Commission. In considering whether to recommend that the existing nonconforming sign be designated as nostalgic, the Historic Preservation Board shall consider the sign's value as a part of the historical, cultural, aesthetic, and architectural heritage of the city, state, or nation. The Historic Preservation Board shall review the criteria contained in Section 4.5.1, of the Land Development regulations prior to making its recommendation.
(ii)
An owner of property on which an existing nonconforming sign is located may request the Historic Preservation Board to recommend to the City Commission that the existing nonconforming sign be designated as a "nostalgic sign."
(iii)
Any existing nonconforming sign designated as a nostalgic sign must be maintained in good condition. If at any time the sign becomes unsightly, or becomes a danger to the public health, safety, or welfare, the City Commission, following notification to the owner, may remove the nostalgic designation and set a date by which time the sign must be removed.
(d)
Drive thru window signs. Signs used by businesses in conjunction with service at a drive-thru window may be permitted as long as the size of the menu board does not exceed seven feet in height, nor 24 square feet in size. A maximum of two signs per drive thru window.
(e)
Special event non-roadway banner signing. Special signing, in accordance with this Subsection, may be allowed by the Chief Building Official or his/her designee, for special events if it is determined that the sign type meets the following criteria: (Ord. No. 41-22, § 3, 1-17-23)
1.
the sign provides notice to the public of a public meeting or other public event,
2.
the sign is temporary and for a limited time, and
3.
the sign, if allowed for a limited time, must meet the following criteria:
(i)
the sign will not conceal or obstruct adjacent land uses or signs,
(ii)
the sign will not conflict with the principal permitted use of the site or adjoining sites,
(iii)
the sign will not interfere with, obstruct vision of or distract motorists, bicyclists or pedestrians, and
(iv)
the sign will be installed and maintained in a safe manner. The approval, or disapproval, of such sign shall not be based on the content of the message contained (i.e., the viewpoint expressed) on such sign. The Chief Building Official or his/her designee shall render a decision within 14 days after an application is made for utilizing this sign type for a special event. Such a decision shall be deemed an administrative interpretation and any person adversely affected has the right to appeal the decision to the City Manager.
4.
Each sign limited to less than twenty square feet (20 sq.ft.) in area;
5.
Allowed 14 days prior to the event and must be removed by the second day after the event.
(f)
Special event roadway banner signing. (Ord. No. 41-22, § 3, 1-17-23)
1.
Roadway banner signs. May be approved and issued by the Sign Administrator under the direction of the Director of Community Improvement, for special events. Such signing shall be subject to the following standards:
(i)
The Roadway Banner Sign must be no more than three feet in height by 24 feet in length, and placed at least 15 feet above the surface of the roadway on City installed poles. The Roadway Banner sign must be constructed with a standard vinyl awning material and meet wind load requirements.
(ii)
The text of a roadway banner shall be limited to the name of the special event, the date or dates of the event and the name or logo of the City and the name or logo of the association or organization co-sponsoring the event.
(iii)
Display of the Roadway Banner Sign will be limited to a maximum of 14 days prior to the event and must be removed by no later than two days after the event.
(iv)
Roadway Banner Signs will only be allowed to be displayed at the following intersections within the City limits and on City installed poles:
•
NE 1st Avenue and East Atlantic Avenue;
•
Pineapple Grove Way and East Atlantic Avenue within the arch area;
•
Swinton and East Atlantic Avenue; and
•
NE 5th Avenue and West Atlantic Avenue.
(v)
the sign will not conceal or obstruct adjacent land uses or signs,
(vi)
the sign will not conflict with the principal permitted use of the site or adjoining sites,
(vii)
the sign will not interfere with, obstruct vision of or distract motorists, bicyclists or pedestrians, and
(viii)
the sign will be installed and maintained in a safe manner. The approval, or disapproval, of such sign shall not be based on the content of the message contained (i.e., the viewpoint expressed) on such sign. The Chief Building Official or his/her designee shall render a decision within 14 days after an application is made for utilizing this sign type for a special event. Such a decision shall be deemed an administrative interpretation and any person adversely affected has the right to appeal the decision to the City Manager.
(g)
Subdivision identification signs. Residential subdivision identification signs shall be located only at the entrance to the subdivision and subject to the following standards: (Ord. No. 41-22, § 3, 1-17-23)
1.
Such signs may be either one double-faced sign or two signs where there are two walls at the entrance and where the signs are permanently affixed to the walls at each entrance of the subdivision;
2.
Each sign area shall be no greater than 36 square feet in area;
3.
Such subdivision entrance signs are permitted within all residential zoning districts;
4.
Such subdivision entrance signs may be erected within rights-of-way or median strips adjacent to the subdivision if approved by the City. A subdivision sign may also be located within the setbacks of private property within the subdivision or adjacent to the subdivision or adjacent to the subdivision within the guidelines set forth in 4.6.7(E)(3), if such sign was in existence as of July 1, 1988.
5.
Any such sign erected within a right-of-way or setback shall be at least ten feet from a paved roadway and signs located within a median shall be at least five feet from any paved roadway;
6.
Any such signs approved for location within the right-of-way or median, if such right-of-way or median is not within the jurisdiction of the City, shall obtain written permission from the governmental entity controlling the right-of-way or median to erect the sign in a requested and approved location;
7.
Any signs proposed to be located on adjacent private property shall be approved and permitted by the owners of the adjacent property. Any such signs lying on private property shall be considered an additional permitted sign without regard to other applicable sections of this code; and
8.
All signs proposed to be located within a right-of-way or median shall be reviewed and approved by the City Engineer or appointed designee for compliance with this section.
(h)
Temporary identification signs. Temporary identification signs shall be subject to the following standards: (Ord. No. 41-22, § 3, 1-17-23)
1.
Freestanding Sign: One sign per street frontage, non-illuminated, with a sign area of not more than 32 square feet, nor more than seven feet in height.
2.
Sign Located on a Building: One sign per building frontage, non-illuminated with a sign area of not more than 32 square feet.
3.
The sign may be installed at the time of submission of a building permit application. It must be removed upon expiration of building permit or building permit application or when the project obtains a Certificate of Occupancy.
(i)
Valet parking signs. Signs for Valet Parking shall be allowed subject to the following restrictions: (Ord. No. 41-22, § 3, 1-17-23)
1.
One pole mounted sign per approved Valet Queue, meeting the requirements of valet parking agreements.
2.
Valet Parking signs shall be manufactured and installed by the City. The sign area shall not exceed six square feet in area. Such sign shall be pole mounted and inserted in a ground sleeve. The location of such sign shall be determined by the City. The sign must be removed and stored inside the business daily during business hours when the approved valet queue is not in use.
3.
Traffic control cones may be used for queuing purposes, however they shall not contain any additional signage or markings.
(G)
Non-commercial message. Notwithstanding anything contained in Section 4.6.7 "Signs", to the contrary, any sign erected pursuant to the provisions of this Code may, at the option of the applicant, contain either a non-commercial message unrelated to the business located on the premises where the sign is erected or a commercial message related to the business and located on the business premises. The non-commercial message may occupy the entire sign face or portion thereof. The sign face may be changed from commercial to non-commercial messages as frequently as desired by the owner of the sign, provided that the size and design criteria conform to the applicable portions of this section, the sign is allowed by this Code, the sign conforms to the requirements of the zoning designation and the appropriate permits are obtained. Noncommercial copy may be substituted for commercial copy wherever commercial copy appears. For the purposes of Section 4.6.7, non-commercial messages, by their very nature, shall never be deemed off-premises.
(H)
Exempt signs. The following signs are allowed to be erected on private property in the City of Delray Beach, pursuant to the limitations set forth herein, and do not require a permit:
(1)
Automated teller machine (ATM) panels. One panel which is physically constructed within and is an integral part of an ATM, and bears the name of the ATM system to which it belongs.
(2)
Directional signs. Such signs shall not extend more than five feet from the ground and shall not be greater than four square feet in area.
(3)
Flags.
(a)
Flags may be displayed on any residential or non-residential parcel of land in accordance with the following rules:
1.
A Flag is a piece of cloth usually attached at one edge to a staff/pole or cord.
2.
No more than three flags may be placed upon any parcel or development less than one acre in size which is zoned and used for non-residential purposes.
3.
For parcels or developments equal to or greater than one acre in area that are zoned and used for non-residential purposes, no more than one flag per 15,000 square feet of lot area shall be allowed.
(b)
Two flags may be flown at a time when model homes or model apartments are open for inspection.
(4)
Hours of operation signs. Signs denoting hours of operation shall be non-illuminated; have a sign face of not more than one square foot and be located close to the entry of the business.
(5)
Instructional signs. Instructional signs are signs which convey instructions with respect to the premises on which it is located, such as "no trespassing", a danger sign, and similar signs (other than parking signs). Such signs shall not extend more than five feet from the ground and shall not be greater than three square feet in area.
(6)
Nameplates. One nameplate sign per building, not exceeding three square feet in area, of a noncommercial nature, and bearing the name or street address of the principal occupant.
(7)
Non-residential.
(a)
Non-residential real estate signs.
1.
One freestanding real estate sign along each street frontage, including those located within a historic district.
2.
Non-residential Real Estate Signs shall not exceed 16 square feet, and shall be limited to seven feet in height.
3.
Within a non-residential property located in a Historic District, real estate signs shall not exceed 16 square feet, and shall be limited to seven feet in height.
(8)
Residential.
(a)
Residential real estate signs.
1.
One sign per lot, the sign being not greater than three square feet in area on residentially zoned property, however, where a lot is bordered by more than one street, one sign may be erected on each street; [Amd. Ord. 14-07 5/1/07]
2.
One additional sign per lot may be erected on a lot which borders a waterway, provided that the additional sign is located along the waterway. Such sign shall not exceed nine square feet in area; [Amd. Ord. 14-07 5/1/07]
3.
All real estate signs shall be non-illuminated; [Amd. Ord. 14-07 5/1/07]
4.
An additional sign or "rider" sign, of not greater than three square feet, may be attached to or accompany a real estate sign.
(9)
Window signs.
(a)
Plastic or painted signs may be placed upon windows when limited to 20 percent of the aggregate glass area, per tenant space or per main use.
(b)
Paper signs displayed two feet or more from the inside of the glass but which are visible from the outside shall be limited to 20 percent of the aggregate window area, per tenant space. [Amd. Ord. 14-07 5/1/07]
(10)
Temporary signs.
(a)
Temporary non-commercial signs.
1.
Temporary non-commercial signs may be placed on public rights-of-way contiguous to private property with the adjacent private property owner's permission. Such signs shall not be placed in medians or on portions of rights-of-way contiguous to publicly owned property. [Amd. Ord. 34-08 8/19/08]; [Amd. Ord. 14-07 5/1/07]
2.
Each temporary non-commercial sign within a public right-of-way shall be removed within ten days after the date of event, election or referendum. If said signs are not removed prior to the expiration of the ten-day period, the sign shall constitute an abandoned sign and the City shall remove the sign. [Amd. Ord. 14-07 5/1/07]
3.
Temporary non-commercial signs are permitted on private property with the owner's permission; however, no temporary non-commercial sign shall exceed 12 square feet per sign face in area on any private lot or parcel. Signs may not be placed in a location that constitutes a safety hazard or hindrance to pedestrian or vehicular traffic. [Amd. Ord. 34-08 8/19/08]
4.
Any temporary non-commercial sign in the public right-of-way shall not exceed three square feet. No temporary non-commercial sign shall be placed on any public property (non-right-of-way). Signs may not be placed in a location that constitutes a safety hazard or hindrance to pedestrian or vehicular traffic. [Amd. Ord. 34-08 8/19/08]; [Amd. Ord. 14-07 5/1/07]
(b)
Sponsorship signs. [Amd. Ord. 53-09 10/20/09] [New Section Enacted by Ord. 13-08 4/01/08]
1.
Sponsorship signs may be attached to the inside face of the fence surrounding the field at any sports field within the City so long as the advertising on the signs is not visible outside of the sports field area.
2.
Each sponsorship sign shall not exceed 32 square feet.
(11)
Tenant panels. A change of a tenant panel in a directory sign, or a sign which accommodates a tenant, is exempt from needing a permit provided that the sign was permitted and there is no change in colors or letter style.
(I)
Exempt signs requiring city manager or his/her designee's approval.
(1)
Wayfinder and directional signs within public rights-of-way.
(a)
the sign provides notice to the public of a public meeting or other public event,
(b)
An off-premise sign designed to guide or direct pedestrians or vehicular traffic and it also may include kiosks that provide information of general benefit to the community, and
(c)
the sign, if allowed for a limited time, will meet the following criteria:
1.
the signs will not conceal or obstruct adjacent land uses or signs,
2.
the signs will not conflict with the principal permitted use of the site or adjoining sites,
3.
the signs will not interfere with, obstruct vision of or distract motorists, bicyclists or pedestrians, and
4.
the signs will be installed and maintained in a safe manner.
5.
The approval, or disapproval, of such signs shall not be based on the content of the message contained (i.e., the viewpoint expressed) on such signs. The City Manager or his/her designee shall render a decision within ten days after an application is made for utilizing this sign type at a special event. Such a decision shall be deemed an administrative interpretation and any person adversely affected has the right to appeal the decision to the City Commission.
6.
Directional signs shall be no greater than eight inches by 30 inches per sign. The City Engineer must inspect each proposed location for traffic obstruction.
(J)
Prohibited signs. The following signs, or sign features, are prohibited within the City of Delray Beach; however, exceptions as noted herein are allowed. It shall be unlawful for any persons to erect prohibited signs or use prohibited sign features. Further, any sign not provided for, or expressly permitted by these LDRs is also prohibited.
(1)
Banners and wind signs.
(a)
Banners: Prohibited.
(b)
Wind signs: Prohibited.
(2)
Off-premise signs. A sign, including building signs, that advertise an establishment, merchandise, service, or entertainment which is sold, produced, manufactured, or furnished at a place other than the property on which the sign is located, however, non-commercial messages shall never be off-premises.
(3)
Roof sign. A sign or any portion of a sign which is located on the roof or top of the building or which projects above the roof eave of a gable or hip roof or above the top of a parapet, tower, or any other architectural feature. (Ord. No. 22-18, § 3, 11-27-18)
(4)
Snipe signs. Snipe signs are prohibited.
(5)
Traffic confusion. A sign or other advertising matter erected at the intersection of any streets or in any street right-of-way in manner as to obstruct free and clear vision; or at any location where, by reason of the position, shape, or color, it may interfere with, obstruct the view of, or be confused with any authorized traffic sign, a traffic signal, or traffic device; or which makes use of the words "stop", "look", "drive-in", "danger", or any other word, phrase, symbol, or character in a manner as to interfere with, mislead, or confuse vehicular traffic.
(6)
Vehicular signs. Signs placed on vehicles or trailers that are parked in the street, public right-of-way or on private property for the primary purpose of displaying the sign for advertising a commercial enterprise.
(7)
Waterbourne signs. No sign or advertising shall be displayed on a vessel plying the waterways, excluding, the identification of the vessel.
(8)
Commercial signs in public rights-of-way: Prohibited, except as allowed in Section 4.6.7(E)(3). (Ord. No. 53-20, § 3, 3-2-21)
(K)
Structural standards. In addition to provisions of the Standard Building Code and provisions of Chapter 7 of this Code, the following structural standards shall be required for all signs erected in the City.
(1)
Securing signs. Wall signs shall be securely attached to the building or structure by means of metal anchors, bolts, or expansion screws. No wood blocks or anchorage with wood used in connection with screws or nails shall be considered proper anchorage, except in the case of wall signs attached to buildings or structures with walls of wood. No wall sign shall be entirely supported by an unbraced parapet wall.
(2)
Wind loading. Every sign shall be constructed in a manner as to withstand 140 miles per hour wind. Sign contractors or the owner shall submit plans showing location, structural members, and design calculations for wind loading and for signs 32 square feet or over, a certification sealed by a state registered engineer or architect stating that the design will meet the requirements of this code shall be submitted. All sign contractors shall sign a certificate stating wind loading will meet requirements of this chapter where signs under 32 square feet are submitted.
(L)
Removal of signs.
(1)
Removal and disposition of non-complying signs.
(a)
It shall be unlawful to erect, use or maintain a sign or sign structure when it does not comply with the requirements of Section 4.6.7. The City is authorized to remove unlawful signs and sign structures pursuant to the provisions of Section 4.6.7.
(b)
Unauthorized signs are subject to removal pursuant to the following provisions:
1.
Temporary signs.
(i)
The City finds that, in view of the inexpensive nature of these signs and the administrative burden which would be imposed by elaborate procedural prerequisites prior to removal, any procedure other than summary removal of these signs when unlawfully erected and maintained would defeat the purpose of regulating such signs. The City Manager is hereby authorized to remove such signs when unlawfully erected and maintained, subject to the provisions contained below.
(ii)
After removal of a sign pursuant to this section, a notice will be sent, either in person or by first-class postage, prepaid, to the occupant of the property from which the sign was removed, and if the sign identifies a party other than the occupant of the property, the party so identified. The notice shall advise that the sign has been removed and shall state that the sign may be retrieved within 30 days of the date of the notice, and that, if the sign is not retrieved within 30 days, it will be disposed of by the City.
(iii)
The City shall dispose of all unclaimed signs after the expiration of the 30-day period.
2.
Permanent signs.
(i)
Signs and sign structures not subject to removal pursuant to (L)(1)(b)1.(i) above which are or have been erected or maintained unlawfully, may be referred to the code enforcement board for appropriate action or the City may proceed to pursue all remedies available at law or equity to it to remove signs or sign structures which are or have been unlawfully erected or maintained.
(2)
Unsafe signs. Notwithstanding the above provisions, any sign which is declared to be a dangerous sign shall be removed or made to conform with the current building code immediately, upon notice, by the Chief Building Official.
(M)
Penalty. Section 10.99, "General Penalty" of the Code of Ordinances of the City of Delray Beach shall apply.
(N)
Procedure to appeal permit denial.
(1)
Permit application may be denied for the following reasons:
(a)
The application for permit is not fully completed and executed;
(b)
The applicant has not tendered the required application fee with the application;
(c)
The application for permit contains a material falsehood or misrepresentation;
(d)
The applicant has not complied or cannot comply with applicable licensure requirements, ordinances or regulations of the City.
(2)
If permit application was denied, it may be appealed to the Circuit Court of Palm Beach County within 30 days of the decision.
(O)
Severability.
(1)
Generally. If any part, section, subsection, paragraph, subparagraph, sentence, phrase, clause, term, or word of this Article is declared unconstitutional by the valid judgment or decree of any court of competent jurisdiction, the declaration of such unconstitutionality shall not affect the following subsections of this Article, Section 4.6.7(E)(7), "Design Standards Matrix" and Section 4.6.7(G), "Non-Commercial Message".
(2)
Severability where less speech results. Without diminishing or limiting in any way the declaration of severability set forth above in subsection (O)(1) or elsewhere in this Article, this code, or any adopting ordinance, if any part, section, subsection, paragraph, subparagraph, sentence, phrase, clause, term, or word of this Article is declared unconstitutional by the valid judgment or decree of any court of competent jurisdiction, the declaration of such unconstitutionality shall not affect Subsections 4.6.7(E)(7) and 4.6.7(G) of this Article, even if such severability would result in a situation where there would be less speech, whether by subjecting previously exempt signs to permitting or otherwise.
(3)
Severability of provisions pertaining to prohibited signs. Without diminishing or limiting in any way the declaration of severability set forth above in subsection (O)(1) or elsewhere in this Article, this code, or any adopting ordinance, if any part, section, subsection, paragraph, subparagraph, sentence, phrase, clause, term, or word of this Article or any other law is declared unconstitutional by the valid judgment or decree of any court of competent jurisdiction, the declaration of such unconstitutionality shall not affect any other part, section, subsection, paragraph, subparagraph, sentence, phrase, clause, term, or word of this Article that pertains to prohibited signs, including specifically those signs and sign-types prohibited and not allowed under Subsection 4.6.7(J) is declared unconstitutional by the valid judgment or decree of any court of competent jurisdiction, the declaration of such unconstitutionality shall not affect any part, word or paragraph of Subsections 4.6.7(E)(7) and 4.6.7(G), thereby ensuring that sign height, size and location continue to be regulated.
Editor's note— Ord. No. 53-20, § 2, adopted March 2, 2021, repealed subsections 4.6.7(E)(2)—(7) and enacted new subsections (E)(2)—(9). Former subsections (E)(2)—(7) pertained to similar subject matter.
All developments/redevelopments are encouraged to utilize energy efficiency lighting.
Artificial lighting used to illuminate premises shall be directed in such a way to minimize light spillover on adjacent properties and reduce urban glow. In general any lighting requirements not covered by this section should follow the standards in the latest edition of ASHRAE/IESNA related to Exterior Lighting. When lighting is proposed within the vicinity of the beach it shall comply with all other City of Delray Beach Code Sections, including, but not limited to, Section 91.51 (Sea Turtles) which requires that all lighting shall be screened or shielded so that the light is not visible from the beach. In addition, the following standards shall be adhered to: [Entire Section Amended by Ord. 41-08 11/3/08]
(A)
General requirements.
(1)
Luminaries height. The following chart indicates maximum heights allowed for luminaries.
Table 1
(2)
Cutoff luminaire required. All perimeter exterior lighting shall be full cutoff luminaries to minimize spillover on adjacent properties. In order to decrease urban glow, no luminaries shall be directed upwards.
(3)
Illumination standards. The following illumination standards shall be adhered to:
Table 2
Notes:
1. The first row closest to public rights-of-way of display outdoor sales may be increases to a max of 20 foot candles.
2. Fully shielded bollards not greater than 42 inches in height may be permitted up to a max of 20 foot candles.
3. The values for entrance area only applies to the first 66 feet inside the structure as it is needed to effect a transition from bright daylight to lower internal levels.
(4)
Night hours reduction and security. Full cutoff luminaries shall be used for all security lighting and dusk-to-dawn area lighting. Outdoor illumination, including areas used for outdoor sales and display, eating, parking, assembly, service of equipment and freight, loading and unloading, repair, maintenance, commercial activities and industrial activities shall not continue after 11:00 p.m., or more than one hour after active use of the area ceases, whichever is later, except for security lighting. Security lighting shall be required for all active entrances to buildings, parking lots and access to buildings or parking lots. All security lighting shall maintain lighting levels as indicated in Table 2 and shall operate from dusk until dawn. No outdoor recreational facility shall be illuminated after 11:00 p.m. except to conclude a scheduled or sanctioned recreational or sporting event by City of Delray Beach or other authorized agency in progress prior to 11:00 pm. The luminaries shall be extinguished after outdoor recreational events are completed and the site has been vacated. Exceptions would include recreational facilities that are open to the public on a 24-hour basis.
(B)
Requirements for outdoor parking areas and commercial sites.
(1)
Standards. The complete installation of the area lighting system shall comply with applicable local codes and ordinances and meet the recommended illumination levels and uniformity ratios of the Illuminating Engineering Society of North America (I.E.S.), as set forth in this specification. The responsibility for performance to this specification, in its entirety, cannot be split up among individual suppliers of components comprising the system, but must be assumed solely by a single supplier.
(2)
Testing. Upon completion of installation, the system shall be subject to inspection by the City Engineer, at his discretion, to determine compliance with criteria set forth herein. Computer verification shall be made available upon his request.
(3)
Design criteria.
(a)
General. In determining a lighting design, consideration shall be given to the architectural and environmental aspects of the facility it is to serve. This consideration shall be instrumental in determining type of fixture mounting height, and light source.
(b)
Light control and spillage. For perimeter exterior lighting, only full cutoff luminaries will be approved. The applicant is encouraged to minimize light spillage from building and site and to reduce urban-glow for the development/redevelopment proposed. Maximum allowable illumination at the property line of any adjoining parcel or public right-of-way is 0.25 horizontal and vertical foot-candles measured at six feet above grade level.
(C)
Street light requirements. Street light requirements for public rights-of-way shall meet the requirements of the City's Street Light Policy.
(D)
Temporary lighting. Lighting classified as temporary lighting for public festivals, celebrations and the observance of holidays are exempt from this section.
(E)
Deviations. Lighting may vary from this Section to the extent necessary to comply with specific State requirements, i.e., increased intensity required for automatic bank teller areas, etc.
(A)
Purpose and intent. The purpose of this Section is to ensure that adequate off-street parking is provided and maintained to meet the needs of users of structures and usage of land. All parking areas shall be designed and situated to protect public safety and to mitigate potential adverse impacts on adjacent uses or properties. It is the responsibility of the developer of property to provide and maintain adequate off-street parking. [Amd. Ord. 46-96 11/5/96] (Ord. No. 14-24, § 5, 12-10-24)
(B)
Applicability.
(1)
Off-street parking facilities shall be provided in the following situations:
(a)
For any new building constructed;
(b)
For any new category of use established including a new conditional use;
(c)
For any addition or enlargement of an existing building or use;
(d)
For any change in the occupancy of an existing building or the manner in which a use is conducted that would result in additional parking spaces being required.
(2)
For items (c) and (d) from above, the additional parking spaces shall be required only for such addition, enlargement, or change and not for the entire building or use, unless required as a condition of approval associated with the approval of the addition, enlargement, or change.
(3)
When existing parking is diminished by an addition or enlargement and such parking had been previously required, or would be required if the use were established at this point in time, such parking spaces must be replaced and be in addition to those spaces required for the addition or enlargement.
(4)
Notwithstanding the foregoing, effective January 1, 2005, if private land is acquired by a governmental entity for parking or park purposes, the parking spaces attributed to the demand created by the building square footage and use that existed on the land acquired by the governmental entity (less the number of spaces that existed on the property so acquired) shall be credited to land owned by private owner(s) if the land owned by the private owner(s) is located within 300 feet of the land acquired by the governmental entity for parking or park purposes. [Amd. Ord. 47-05 7/19/05]; [Amd. Ord. 80-04 1/18/05]
(5)
The requirements of this Section shall apply for temporary uses as well as permanent uses. [Amd. Ord. 80-04 1/18/05]
(C)
Number of parking spaces required. The number of parking spaces required for new buildings, new uses, additions, enlargements, or changes shall be determined by the following standards for uses and categories of use and types of parking spaces.
(1)
General provisions. The following apply in the application of this Subsection:
(a)
Fractions. When the determination of the number of required parking spaces results in a requirement of a fractional space, any fraction less than one-half space shall be rounded down to the nearest whole number and any fraction of one-half space or more shall be rounded up. [Amd. Ord. 01-09 1/20/09]
(b)
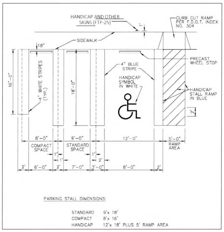
Handicapped spaces. Special parking spaces designed for use by the handicapped shall be provided pursuant to the provisions of Florida Accessibility Code for Building Construction. Such spaces shall not be in addition to, but shall substitute for, required parking. [Amd. Ord. 46-96 11/5/96]
(c)
Bicycle parking and Showers. Bicycle parking is required to meet recreational, transportation, or leisure purposes. Two types of bicycle parking and associated facilities may be required to meet the needs of different types of bicyclists. (Ord. No. 29-20, § 3, 11-10-20) [10]
1.
Bicycle parking shall be provided at the rate defined in Table 4.6.9(C)-1. (Ord. No. 29-20, § 3, 11-10-20)
2.
Type I bicycle parking is required and is intended to be used for short term bicycle parking by visitors. (Ord. No. 29-20, § 3, 11-10-20)
3.
Type II bicycle parking is required at certain thresholds and provides long term storage options for people who reside, work, or are visiting for an extended duration. (Ord. No. 29-20, § 3, 11-10-20)
4.
For uses not listed, new non-residential uses shall provide at least two Type I bicycle parking spaces and Type II bicycle parking spaces may be required for buildings greater than 20,000 square feet as determined by the Development Services Director, and based on a calculation required for a similarly intense use. (Ord. No. 29-20, § 3, 11-10-20)
5.
If required, showers and Type II bicycle parking shall be co-located in a building and provided in a safe, access restricted area or otherwise not accessible to the public at large. Design shall consider crime prevention as a part of design. Specifications for these facilities shall be included within the site plan. (Ord. No. 29-20, § 3, 11-10-20)
(Ord. No. 29-20, § 3, 11-10-20)
(d)
Uses not listed. Any use, or use category, which is not specifically listed herein shall have its parking requirement established at the time of approval of the site and development action associated with the new use or structure.
(e)
Design requirements apply, exceptions. The Design Requirements for parking lots as provided for in Section 4.6.9(D) shall apply to all parking spaces required in this subsection, except for specific provisions to the contrary contained herein. (Ord. No. 29-20, § 3, 11-10-20)
(f)
Requirements are cumulative. In situations where a combination of uses are developed on a site, parking requirements shall be determined for each of the uses according to the parking requirements set forth herein. An exception to this rule may be made, pursuant to Subsection (C)(8), Multiple Uses.
(g)
Compact car parking. Up to 30 percent of the required parking for any use may be designated for compact cars. Such approval may be granted concurrent with approval of the site and development plan. Spaces which are provided in excess of the number required may also be designated and designed as "compact car parking". [Amd. Ord. 46-96 11/5/96]
(2)
Requirements for residential uses.
(a)
Single family detached residences. Two spaces per dwelling unit. Tandem parking may be used in the Single Family (R-1) Residential Districts or Low Density Residential (RL) District. Required parking spaces shall not be located in the front setback or side street setback areas. For lots that are less than 60 feet wide and do not have alley access, one parking space may be located in either the front setback area or the side street setback area, provided that no more than 50 percent of the front and side street setback area may be improved for parking purposes. [Amd. Ord. 01-10 1/19/10] (Ord. No. 25-17, § 34, 7-18-17; Ord. No. 01-18, § 2, 2-6-18)
(b)
Duplexes. Two spaces per dwelling unit. Tandem parking may be used provided that such parking does not result in the space for one unit impeding access to a space of the other unit. Further, curb cuts or direct access from parking areas onto a street shall not exceed 24 feet in width. [Amd. Ord. 01-10 1/19/10] (Ord. No. 25-17, § 34, 7-18-17)
(c)
Multiple family structures. (Ord. No. 25-17, § 34, 7-18-17)
Within townhouse and townhouse type developments, parking may be provided in front of garage units provided that such parking does not result in the space for one unit impeding access to a space of the other unit. [Amd. Ord. 01-10 1/19/10; Amd. Ord. 37-01 7/10/01; Amd. Ord. 46-96 11/5/96]
(d)
Location of guest parking spaces. Guest parking spaces must be accessible to all visitors and guests and may be centralized or located near recreational features within a development project. A portion of guest parking spaces may be provided in stabilized sod pursuant to Section 4.6.9(D)(8). [Amd. Ord. 6-03 5/20/03; Amd. Ord. 28-99 8/17/99]
(3)
Requirements for commercial uses.
(a)
General commercial uses. Shall provide four and one-half spaces per 1,000 square feet of gross floor area that includes retail floor area, associated warehouse and storage floor area, and employee and management facilities. This use category includes Limited Indoor Dining Establishments. (Ord. No. 20-24, § 3, 11-4-24)
(b)
Convenience stores with associated gasoline sales. Shall provide four and one-half spaces per 1,000 square feet of gross floor area of the convenience store and any kiosk or cashier station.
(c)
Gasoline stations. With or without convenience food sales shall provide four and one-half spaces per 1,000 square feet of non-repair gross floor area and shall provide four spaces per service bay or lift. [Amd. Ord. 46-96 11/5/96]
(d)
Restaurants and stand alone bars. Shall provide 12 spaces per 1,000 square feet of gross floor area. [Amd. Ord. 10-12 4/3/12; Amd. Ord. 01-09 1/20/09] (Ord. No. 20-24, § 3, 11-4-24)
(e)
Shopping centers. Spaces required based upon size of center per gross leasable floor area, irrespective of uses: [Amd. Ord. 01-09 1/20/09]
(Ord. No. 20-24, § 3, 11-4-24)
(f)
Vehicle sales and rental. Including auto sales, auto rental agencies, recreational vehicle sales and rental, and truck sales and rental, shall provide four spaces per 1,000 square feet of total building(s) gross floor area, except indoor display areas. Required parking spaces shall be designated for employee, customer, and/or service use at the standard of, at least, one and one-half spaces per service bay and two spaces per 1,000 square feet of gross floor area (less indoor display area). Any remaining spaces may be used for display purposes. [Amd. Ord. 01-09 1/20/09] (Ord. No. 20-24, § 3, 11-4-24)
(g)
Personal service providers. (Beauty Salons, Spas, etc.): Shall provide four and one-half spaces per 1,000 square feet of gross floor area in buildings up to 5,000 square feet and four and one-half spaces per 1,000 square feet of gross floor area plus one-half spaces per work station in buildings greater than 5,000 square feet as it pertains to the personal service provider uses. (Work stations providing manicure services that include both manicure table and pedicure chair shall be calculated as one work station for each table and chair combined). [Amd. Ord. 48-06 9/19/06] (Ord. No. 20-24, § 3, 11-4-24)
(4)
Requirements for office uses.
(a)
Business and professional offices. Except governmental, medical, and call center offices, shall provide: [Amd. Ord. 22-11 7/19/11]
•
4 spaces per 1,000 sq.ft. of net floor area up to 3,000 square feet and then three and one-half spaces per 1,000 square feet of net floor area over the initial 3,000 square feet. [Amd. Ord. 01-09 1/20/09]
(b)
Governmental offices. Including public health and rehabilitative services, shall provide five spaces per 1,000 square feet of gross floor area.
(c)
Medical and dental offices. Including clinics and mental health treatment facilities, shall provide five spaces per 1,000 square feet of gross floor area.
(d)
Call centers. Two spaces per 1,000 square feet of gross floor area, plus one space per work station as shown on a floor plan schematic. [Amd. Ord. 22-11 7/19/11]
(5)
Requirements for industrial uses.
(a)
General. General Industrial Uses (manufacturing, assembly, attendant offices) shall provide parking at the rate of three spaces per 1,000 square feet of gross floor area devoted to such uses. In addition, 1 space shall be provided for each 1,000 square feet of gross floor area devoted to storage and warehouse use. [Amd. Ord. 01-09 1/20/09]
(b)
Vehicle paint, body, and repair shops. Shall provide four and one-half spaces per 1,000 square feet of gross floor area.
(c)
Vehicle wrecking and salvage yards. Shall provide one space per 10,000 square feet of lot area.
(6)
Requirements for recreational and community facilities either public or private.
(a)
Auditoriums, meeting places. Assembly halls, conference and meeting rooms, theaters, stadiums, civic centers, community theaters, cultural facilities, arts and crafts centers, and similar uses shall provide three-tenths of a parking space for each seat or one space for each 50 sq.ft. of gross floor area, whichever is greater. [Amd. Ord. 01-09 1/20/09]
(b)
Bowling establishments. Shall provide 4 parking spaces per lane.
(c)
Churches. Shall provide one space for every three seats provided in the sanctuary. Additional parking is not required for other uses on the church property (e.g. Sunday School, Day Care, Preschool, etc.) when such uses are operated as a part of, under the auspices of, the Church.
(d)
Clubs and lodges. Shall provide one space for every four seats or one for every 50 square feet of gross floor area, whichever is greater. [Amd. Ord. 01-09 1/20/09]
(e)
Educational facilities. Public or private, shall provide the following:
(f)
Fire stations. Shall provide one space for each employee on the shift with greatest employment.
(g)
Golf courses. A full golf course shall provide seven parking spaces per hole; an executive golf course shall provide four parking spaces per hole.
(h)
Miniature golf courses. Shall provide one and one-half parking spaces per hole.
(i)
Hospitals. Shall provide one and one-half spaces per bed, plus one-hundredth of one square foot of floor area in rooms for outpatient, emergency, and other special service areas open to the public.
(j)
Libraries. Shall provide four-thousandths of one square foot of gross floor area. [Amd. Ord. 01-09 1/20/09]
(k)
Museums. Shall provide five-thousandths of one square foot of floor area which is open to the public.
(l)
Police stations, public works complexes. Shall provide four-thousandths of one square foot of gross floor area. This requirement shall encompass all uses on the premises. [Amd. Ord. 01-09 1/20/09]
(m)
Post offices. Shall provide five-thousandths of one square foot of gross floor area in addition to a parking area for employees. [Amd. Ord. 01-09 1/20/09]
(n)
Swim clubs. Shall provide one-thirtieth of one square foot of total water surface.
(o)
Tennis clubs. Shall provide four spaces per court.
(p)
Community facilities within planned residential developments. Shall provide parking sufficient to accommodate guest, service and local needs recognizing that residents have other means of access. The parking shall be pursuant to an approved site plan. [Amd. Ord. 46-96 11/5/96]
(q)
Parks. Shall have the parking needs assessed and determined by the City Manager or designee.
(r)
Yacht clubs. One space per 1,000 square feet of gross floor area and outdoor seating/eating area plus one-half spaces for each boat slip. [Amd. Ord. 01-09 1/20/09]; [Amd. Ord. 46-96 11/5/96]
(7)
Other uses.
(a)
Abused spouse residence. One space per sleeping room plus one space for each shift employee.
(b)
Nursing homes. Shall provide one space for each four beds. [Amd. Ord. 02-10 1/19/10]; [Amd. Ord. 4-04 2/3/04]; [Amd. Ord. 35-00 1/2/01] (Ord. No. 25-17, § 35, 7-18-17)
(c)
Assisted living facilities. that do not comport with the definition of "community residence" and Continuing Care Facilities: Facilities shall provide 1.5 spaces per unit. (Ord. No. 25-17, § 35, 7-18-17)
(d)
Bed and breakfast inns. Shall provide one per guest room and one for the manager/owner.
(e)
Hotels and motels. Shall provide seven-tenths of a space for each guest room plus ten spaces per 1,000 square feet of floor area devoted to ballrooms, meeting rooms, restaurants, lounges, and shops.
(f)
Broadcast facilities and communication facilities. Shall provide four-thousandths of one square foot of gross floor area. [Amd. Ord. 01-09 1/20/09]
(g)
Bus stations, taxi stations, and train stations. Shall provide three-thousandths square feet of gross floor area (including storage areas). [Amd. Ord. 01-09 1/20/09]
(h)
Child care and adult day care. Shall provide 1/300 of one square foot of gross floor area. [Amd. Ord. 01-09 1/20/09]
(i)
Courts, courthouses and related facilities. Shall provide 1/150 of one square foot (net) of courtroom space plus 1/250 of one square foot (gross) of non-courtroom area, excluding walls, elevators, stairwells, and mechanical equipment areas.
(j)
Funeral homes. Shall provide four-thousandths of one square foot of gross floor area plus three-tenths/each seat in the chapel, if any. [Amd. Ord. 01-09 1/20/09]
(k)
Marinas. Shall provide five-thousandths of one square foot of gross floor area of any building devoted to marina use plus one/slip. [Amd. Ord. 01-09 1/20/09]
(l)
Community residences. Shall provide off-street parking for the greater of (a) the number of off-street spaces required under this code for the type of dwelling unit (single family, duplex, multi-family, etc.) in which the community residence is located, or (b) one-half off-street space for each staff member on a shift and/or live-in basis plus, when residents are allowed to maintain a motor vehicle on premises, the maximum number of occupants that is permissible under this land development regulation and the city's building and property maintenance codes. Off-street spaces may be provided on the premises or at an off-site location other than a street or alley. [Amd. Ord. 02-10 1/19/10] (Ord. No. 25-17, § 35, 7-18-17)
(m)
Urban farm sites. Shall provide one space for every two acres or portion thereof of outdoor production area and two spaces for every 1,000 square feet or portion thereof of gross floor area of buildings used for the Urban Agriculture site (excluding sheds and other utility structures used only to house equipment and/or supplies.) (Ord. No. 07-17, § 16, 5-16-17)
(8)
Multiple uses.
(a)
Shared parking. When a building or combination of buildings on a unified site or sites contains a mix of uses as categorized in the table below, the minimum total number of required parking spaces shall be determined by the following method: [Amd. Ord. 35-09 8/4/09]; [Amd. Ord. 33-06 12/5/06]; [Amd. Ord. 28-99 8/17/99]
Multiply the required parking spaces for each individual use by the appropriate percentage listed in the table below for each of the designated time periods. Add the resulting minimum required spaces in each of the five vertical columns for the table. The minimum total parking requirement is the highest sum of the vertical columns. [Amd. Ord. 28-99 8/17/99]
Shared Parking Calculations Table
Use for multiple use projects
For mixed use developments utilizing the shared parking calculations table, which contain both residential and non-residential uses, a minimum of one parking space shall be reserved for each residential unit. These reserved spaces, or any spaces reserved for other uses, must be included in the "other" category and applied as 100 percent utilization. Furthermore, subsequent to the issuance of a Certificate of Occupancy (CO), the reservation of additional parking spaces will require a site plan modification and be subject to the provision of the minimum parking requirements. [Amd. Ord. 3-06 1/17/06]
(b)
Differing hours of operation. When uses within a structure or a development have separate hours of operation (e.g. 9:00 a.m. to 5:00 p.m. and 6:00 p.m. to 10:00 p.m.) administrative relief may be granted to allow double counting of parking spaces.
(c)
Subordinate uses. When parking spaces are provided based upon an intensive use of a site (e.g. church services) and, at different times, other uses are on the site (e.g. day care) administrative relief may be granted to the effect of not requiring parking for the subordinate uses.
(D)
Design standards. All parking spaces which are created in order to fulfill requirements of this Section (i.e. required parking spaces) shall conform to the design standards of this subsection.
(1)
General design concepts. The following concepts shall be applied in the layout and design of parking lots:
(a)
Parking spaces should be located and arranged in such a manner as to facilitate pedestrian access to the uses they are intended to serve. In general, parking spaces should be distributed proportionately to needs.
(b)
Employee parking should be located in the area least desirable for customer or short-term parking.
(c)
Compact car parking, where allowed, should be integrated throughout a parking lot in such a manner that compact and standard cars have equal access to desirable parking spaces.
(d)
Handicapped spaces are to be provided in accordance with the Florida Accessibility Code for Building Construction and shall be located as close as is practical to the entrances of the buildings they are intended to serve. To the greatest extent possible, they shall be oriented so that a user does not have to go past the rear of other parking spaces or cross an aisle in order to reach the building's main entrance. [Amd. Ord. 46-96 11/5/96]
(e)
Single level mechanical parking lifts ("Lifts"), if utilized, shall be integrated into an existing or proposed building for the uses they serve and enclosed with three walls and a roof. A maximum of 50 percent of the required parking within a non-residential or the non-residential portion of a multi-use development may utilize Lifts. [Amd. Ord. 34-07 9/18/07]
(f)
Underground parking, if utilized, is not subject to setback requirements, except for any portion of the structure located above grade. (Ord. No. 10-20, § 4, 9-22-20)
(g)
Developments that include underground parking shall meet the requirements of Section 7.1.8, Construction Parking and Staging. (Ord. No. 10-20, § 4, 9-22-20)
(2)
Provisions for ingress and egress. Each required parking space shall be accessible at all times. Access which conforms with minimal aisle standards and which includes maneuvering area so that a vehicle must be able to enter and exit the parking area onto a street or alley in a forward manner shall be provided, except in the following situations. [Amd. Ord. 46-96 11/5/96]
(a)
When the land use is a single family detached dwelling, a townhouse (fee simple ownership), or a duplex;
(b)
When the parking is adjacent to an alley and the parking space and alley have a combined minimum depth of 42 feet and a minimum width of ten feet and the location of parked vehicles does not impair sight distance of pedestrians or vehicles utilizing the alley; [Amd. Ord. 46-96 11/5/96]
(c)
When the street is a private street within a planned development and the street, at the location of the parking, has less than 200 ADT.
(3)
Point of access to the street system. (Ord. No. 11-20, § 3, 12-8-20) [11]
(a)
Maximum width. The point of access to a street or alley shall be a maximum of 24 feet unless a greater width is specifically approved as a part of site and development plan approval. However, in no event shall such point of access be greater than 36 feet. (Ord. No. 11-20, § 3, 12-8-20)
(b)
Minimum width. The point of access to a street or alley shall not be less than: (Ord. No. 11-20, § 3, 12-8-20; Ord. No. 60-20, § 2, 12-8-20)
(1)
24 feet for a normal two-way private street or parking lot driveway aisle. (Ord. No. 11-20, § 3, 12-8-20; Ord. No. 60-20, § 2, 12-8-20)
(2)
20 feet for a private driveway which has less than 200 ADT. (Ord. No. 11-20, § 3, 12-8-20; Ord. No. 60-20, § 2, 12-8-20)
(3)
12 feet for a one-way driveway or parking lot aisle. (Ord. No. 11-20, § 3, 12-8-20; Ord. No. 60-20, § 2, 12-8-20)
(c)
Stacking distance. Provisions must be made for stacking and transition of incoming vehicular traffic from a public street into a private property to maintain a clear and safe path for vehicles, bicyclists, and pedestrians. Vehicles shall not queue into or obstruct the public right-of-way, nor planned or existing public infrastructure in the ultimate right-of-way, per Always Delray Table MBL-1, Street Network Classification and Improvements. (Ord. No. 11-20, § 3, 12-8-20)
1.
The minimum distance between a right-of-way and the first parking space or aisleway in a parking lot not controlled by access gates shall be as outlined in Table 4.6.9(D)-1: (Ord. No. 11-20, § 3, 12-8-20)
(Ord. No. 11-20, § 3, 12-8-20)
2.
The minimum stacking distance may be reduced to a minimum of 20 feet for parking lots containing more than 50 parking spaces when the parking lot is designed and operated with two or more access points. This reduction in stacking distance is subject to approval by the City Engineer based on the following: (Ord. No. 11-20, § 3, 12-8-20)
a.
The primary access point to the parking lot is not located along a collector or arterial street; and (Ord. No. 11-20, § 3, 12-8-20)
b.
A Traffic Statement or Study identifies that the site will generate no more than 200 ADT; or (Ord. No. 11-20, § 3, 12-8-20)
c.
A dedicated right turn lane measuring at least 50 feet in length from the primary access point is located along a collector or arterial street. (Ord. No. 11-20, § 3, 12-8-20)
3.
Drive-thru facilities must provide a minimum of 100 feet of stacking distance from the first point of transaction for each lane. (Ord. No. 11-20, § 3, 12-8-20)
(4)
A stacking area in advance of access gates, guardhouses, and other barriers shall be provided as follows: (Ord. No. 11-20, § 3, 12-8-20)
a.
Single-Family dwelling units, duplexes and townhomes with direct, individual unit access to a public right-of-way shall provide: (Ord. No. 11-20, § 3, 12-8-20)
i.
Along all road classifications, except local, a minimum stacking distance of 20 feet from the ultimate right-of-way (See Figure 4.6.9(D)4-1). (Ord. No. 11-20, § 3, 12-8-20)
ii.
Along local roads, gates, wall, fences, or similar structures, that are 25 percent or less opaque and do not create visual obstructions, are permitted on the ultimate right-of-way line or on the property line without a stacking distance, whichever distance is greater, and are not subject to the regulations in Section 4.6.14 (See Figure 4.6.9(D)4-2). (Ord. No. 11-20, § 3, 12-8-20)
b.
Planned residential developments, whether single or multi-family, and all other uses and access configurations not listed above, shall provide: (Ord. No. 11-20, § 3, 12-8-20)
i.
A minimum stacking distance of 100 feet from the property line or ultimate right-of-way, whichever is greater (See Figure 4.6.9(D)4-3). (Ord. No. 11-20, § 3, 12-8-20)
ii.
For commercial uses, a minimum stacking distance of 20 feet from the ultimate right-of-way, if the access gate or barrier remains open at all times during business hours (See Figure 4.6.9(D)4-4). (Ord. No. 11-20, § 3, 12-8-20)
c.
Gates, walls, fences or similar structures that are more than 25 percent opaque must comply with the sight visibility requirements in Section 4.6.14 and regulations governing walls, fences, and hedges in Section 4.6.5. (Ord. No. 11-20, § 3, 12-8-20)
(5)
Additional stacking distance may be required to improve site access and public safety. A reduction to the minimum required stacking distance may be requested when supported by a traffic study and justification statement addressing access into the site and efforts to diminish the impact of queuing on the public right-of-way. The City Engineer shall provide a written determination regarding the request to reduce the stacking distance. A denial to reduce the minimum stacking distance requirement may be appealed to the City Commission and processed as a waiver request. (Ord. No. 11-20, § 3, 12-8-20)
(6)
Maneuvering area, aisle width, space width. (Ord. No. 11-20, § 3, 12-8-20)
(a)
The standard parking space is nine feet in width and 18 feet in length in a perpendicular configuration. Parallel parking spaces shall be eight feet in width and 22 feet in length. Parking space dimensions for other types of spaces are: [Amd. Ord. 46-96 11/5/96] (Ord. No. 60-20, § 2, 12-8-20)
(1)
Compact Car Spaces at eight feet x 16 feet. (Ord. No. 11-20, § 3, 12-8-20; Ord. No. 60-20, § 2, 12-8-20)
(2)
Handicapped Spaces at 12 feet x 18 feet. (Ord. No. 60-20, § 2, 12-8-20)
(3)
Diagonal Spaces per Subsection (4)(e). (Ord. No. 60-20, § 2, 12-8-20)
(b)
Wheel Stops shall be provided for all parking, other than parallel, in the form of concrete or asphalt wheel stops or a continuous concrete curb which is located so that there is two feet of clear distance from the front edge of the device to the front of the parking space. Treated wood, stones, or similar landscape features may be allowed upon approval through the site plan review process. The requirement for wheel stops may be waived through the site plan review process when the parking spaces are on stabilized sod. [Amd. Ord. 46-96 11/5/96]
(c)
Dead-end Parking Bays are discouraged, but when site conditions dictate that there be dead-end parking bays, they shall be designed so that there is a 24 feet wide by six feet deep maneuvering area at the end of the bay. This maneuvering area shall not encroach upon required landscape areas. [Amd. Ord. 46-96 11/5/96]
(d)
The standard aisle width is 24 feet for normal traffic flow with perpendicular parking. The maximum aisle width is 26 feet. Exceptions may be made at the time of site plan approval in order to accommodate pickup or drop-off areas. The width of aisles associated with diagonal parking is per Subsection (4)(e). Two-way traffic flow must be used when perpendicular parking spaces are used. The minimum aisle width for two-way traffic flow is twenty feet but this dimension can only be used for short distances where there are no parking spaces entering therein.
(e)
Alternative Parking Lot Designs: Parking lot designs which incorporate one-way aisles, two-way aisles, and diagonal parking may be used in lieu of the standard (perpendicular, two-way aisle) parking lot design. Diagrams depicting these designs are provided below. [Amd. Ord. 46-96 11/5/96]
(7)
Landscaping requirements. All parking lots shall be landscaped in accordance with the provisions of Section 4.6.16. (Ord. No. 11-20, § 3, 12-8-20)
(8)
Marking and signage.[12] Parking spaces required to be striped shall comply with the Minimum Construction Standards and Specifications document developed by the City Engineer and Figure 4.6.9(D)(6)-1, Typical Parking Space Detail RT 4.2, as further identified: (Ord. No. 60-20, § 2, 12-8-20)
(a)
All parking stalls, with the exception of stabilized sod parking, shall be clearly demarcated as follows: [Amd. Ord. 46-96 11/5/96] (Ord. No. 60-20, § 2, 12-8-20)
1.
Parallel parking stalls shall use a single line surface striping. (Ord. No. 60-20, § 2, 12-8-20)
2.
Diagonal, perpendicular, and other parking stalls shall use a double line surface striping. (Ord. No. 60-20, § 2, 12-8-20)
3.
Handicapped spaces shall be striped and marked as shown in Figure 4.6.9(D)(6)-1, Typical Parking Space Detail RT 4.2, and in accordance with the Florida Accessibility Code for Building Construction. Each handicapped space shall have a sign at the head of the stall reserving it for handicapped parking only. (Ord. No. 60-20, § 2, 12-8-20)
(b)
Parking spaces intended for operational uses, such as curbside pick-up and drop-off, or to reserve or limit the use of parking spaces, other than handicapped spaces, are subject to the following: (Ord. No. 60-20, § 2, 12-8-20)
1.
A maximum of five percent of the total number of required spaces, or one space, whichever is greater, may be designated for operational uses. (Ord. No. 60-20, § 2, 12-8-20)
2.
Signs are limited to a maximum of four square feet and six feet in height. Signs shall be mounted to a wall or a fixed pole located in front or to the side of the space. (Ord. No. 60-20, § 2, 12-8-20)
3.
Markings on the parking space surface are discouraged. When necessary, such markings shall only include references to the space designation without business logos or symbols and are limited to a maximum of 25 percent of the total parking space area. (Ord. No. 60-20, § 2, 12-8-20)
(c)
Drive aisles, approach lanes, and maneuvering areas within parking lots and facilities containing more than 20 parking spaces shall include directional arrows and lines as approved by the City Engineer. The City Engineer may require additional signage to insure the smooth and safe flow of traffic. (Ord. No. 60-20, § 2, 12-8-20)
(d)
All signs and markings shall comply with the design criteria as set forth in the M.U.T.C.D. (Manual of Uniform Traffic Control Devices), except that the City Engineer, or his designee, may waive such compliance on a case-by-case basis. Any decision by the City Engineer or his designee may be appealed pursuant to Section 2.4.7 of the Land Development Regulations of the Code of Ordinances of the City of Delray Beach, Florida. (Ord. No. 60-20, § 2, 12-8-20)
(e)
Parking spaces required to be striped shall comply with the Minimum Construction Standards and Specifications document developed by the City Engineer and Figure 4.6.9(D)(6)-1, Typical Parking Space Detail RT 4.2. (Ord. No. 60-20, § 2, 12-8-20)
Figure 4.6.9(D)(6)-1, Typical Parking Space Detail RT 4.2
(Ord. No. 60-20, § 2, 12-8-20)
(9)
Compact car parking areas. Compact car parking areas, where permitted, shall be clearly marked with markings as follows: [See Subsection (1)(g) as to approval for use of Compact Car Spaces]. [Amd. Ord. 46-96 11/5/96] (Ord. No. 11-20, § 3, 12-8-20)
(a)
All compact spaces shall have "compact car only" painted on the required wheel stops. [Amd. Ord. 46-96 11/5/96]
(b)
Alternate signage for compact car parking may be approved by the Chief Building Official when comparable to the standards set forth above. [Amd. Ord. 46-96 11/5/96]
(10)
Parking surfaces and drainage. (Ord. No. 11-20, § 3, 12-8-20)
(a)
All parking lots and parking spaces, including car storage and display areas, shall be improved either with a paved surface meeting Engineering Department standards, or with a hard surface material (such as brick or turf block on a base course laid in accordance with approved manufacturer's recommendations), or with some other type of surface material acceptable to the City Engineer. Parking lots and parking spaces on historic sites or within historic districts may be improved with a surface material other than pavement, where there are 12 or less parking spaces, subject to approval by the Historic Preservation Board.
(b)
A surface of sod over stabilized base shall be acceptable for required guest parking in multiple-family projects, as well as for parking used on a once-a-week or occasional basis. Parking lots and spaces proposed to be constructed of stabilized sod may be allowed through the site plan approval process. [Amd. Ord. 46-96 11/5/96]
(c)
In paved parking lots, that portion of the parking space extending beyond the car stop may be sodded. When this option is selected, a continuous curb at least six inches in height may be substituted for the wheel stops.
(d)
Handicapped parking spaces shall be paved and properly marked. A paved route shall be provided between the handicapped parking space and the building entrance. Where an abrupt grade change occurs, as between the surface of the parking area and a curb cut, a ramp shall be provided for handicap access. The ramp or curb cut with ramp shall be designed in accordance with the Florida Accessibility Code for Building Construction. [Amd. Ord. 46-96 11/5/96]
(e)
The City Engineer shall approve the drainage and grading plans for parking spaces and parking lots. He shall also conduct inspections during and after construction of the parking area and its drainage system to ensure that it is constructed in accordance with the approved paving and drainage construction plans.
(f)
Parking lots, parking spaces and driveways that exist at the time of adoption of this ordinance that are not in compliance with Section 4.6.9(D)(8) shall be required to come into compliance with this section within 3 years of the adoption of this ordinance. This includes, but is not limited to, all duplexes, multi-family, and commercial property, but excludes single family homes. [Amd. Ord. 29-01 5/15/01]
(11)
Lighting. Lighting of parking lots shall be pursuant to Section 4.6.8(B). (Ord. No. 11-20, § 3, 12-8-20)
(12)
Operations and maintenance. (Ord. No. 11-20, § 3, 12-8-20)
(a)
All required parking facilities shall be maintained for the duration of the use requiring such facilities. Such facilities shall be used exclusively for the parking of vehicles. With the exception of vehicle rental or sales, parking facilities shall not be used for the storage or sale of merchandise, nor shall they be used for the storage or repair of vehicles or equipment. Parking facilities may be used for the sale of merchandise on a temporary basis for special events when approved in accordance with the provisions of Subsection (F)(2).
(b)
It shall be the responsibility of the owner or operator of a specific use to ensure that the parking facilities are kept in good operating condition and that the parking facilities are periodically swept and cleaned. All parking lots and spaces shall be maintained so as not to create a hazard, eyesore, or nuisance. This includes, but is not limited to, removing glass and litter; pruning, nourishing, and watering vegetation; resurfacing and restriping surface markings; reanchoring or replacing loose and broken wheel stops; and replacing or painting signs.
(13)
Mechanical parking lifts. (Ord. No. 11-20, § 3, 12-8-20)
(a)
Single level mechanical parking lifts ("Lifts") shall be integrated into a structure for the uses they serve, constructed with at least three walls and a roof, in accordance with Section 4.4.13(F)(8), to provide adequate screening and containment of sound from operation of the lifts for the benefit of adjacent land uses. [Amd. Ord. 28-15 12/08/15]
(b)
Lifts may be utilized to provide up to but not more than 50 percent of the required non-residential parking for commercial or mixed-use developments.
(c)
Lifts and the spaces below them must be operated by an attendant during all hours of operation. Upon closing, the parking attendant shall remove all vehicles from atop and beneath the Lifts and park them in an area where the customer may retrieve their vehicle. At no time shall the general public be permitted to operate the Lifts.
(d)
On-site staging spaces must be provided for the maneuvering of vehicles to facilitate the parking and retrieval of vehicles. At no time shall vehicles be staged within the adjacent public right-of-way. A minimum of two staging spaces shall be provided for the first 20 Lifts or less. One additional staging space shall be provided for every 20 additional Lifts or part thereof.
(e)
Lifts must be manufactured with a full bottom panel to contain fluids which may be emitted from vehicles while parked (oil, condensation from air conditioners, etc.) No wheel or chassis lift mechanisms (historically used at service stations) are permitted.
(f)
The balance of the required non-residential spaces shall be provided as "self-park" spaces.
(g)
For each lift provided, a minimum of 75 square feet of landscaped area over and above the minimum required by code must be provided and shall be located to provide a view corridor for the general public. Lots of record having a width less than 50 feet shall be exempt from the requirement of this additional landscape/open space;
(h)
The Lifts shall be regularly and routinely maintained to ensure safety and dependability of operation and minimization of operational noise levels. Maximum sound levels shall not exceed applicable thresholds as stipulated in Chapter 99 of the City Code of Ordinances.
(14)
Bicycle Parking Typology. A bicycle space is a permanently affixed bicycle rack for the purpose of parking a bicycle. The City of Delray Beach requires two distinct types of bicycle parking to meet the needs of different types of people who use a bicycle. All bicycle racks must be installed using the manufacturer's standard detail. (Ord. No. 29-20, § 3, 11-10-20)
(a)
Type I Bicycle Parking. A Type I Bicycle Parking space is a convenient bicycle space visible and publicly accessible from the street. Type I Bicycle Parking is used for a short period of time, approximately four hours. A Type I Bicycle Rack accommodates two spaces for the purposes of meeting the minimum number of required bicycle parking spaces. Type I Bicycle Racks placed on private property to meet the minimum requirements for off-street bicycle parking shall follow the form identified as a Typical Type I Bicycle Rack in Figure 4.6.9(D)-1 unless a variation is approved through the Site Plan approval process. Variations from a Typical Type I Bicycle Rack may be approved if the rack meets all of the following requirements: (Ord. No. 29-20, § 3, 11-10-20)
i.
Supports bicycle by making two points of contact with the bicycle, preventing it from falling over; (Ord. No. 29-20, § 3, 11-10-20)
ii.
Allows locking of the frame and one or both wheels with a u-lock; (Ord. No. 29-20, § 3, 11-10-20)
iii.
Allows two bicycles to be parked per rack. (Ord. No. 29-20, § 3, 11-10-20)
(b)
Up to 50 percent of the required Type I bicycle parking may be located within a public right-of-way if the approving body with support from the City Engineer and the Development Services Director determines that existing conditions, such as the existing building location or configuration, limit bicycle parking from being located on site. Bicycle parking placed within the public right-of-way must meet the City Standard and a maintenance agreement must be provided in a form acceptable to the City Attorney. (Ord. No. 29-20, § 3, 11-10-20)
(c)
If an improved alley or loading area is present or will be improved at time of development, up to 20 percent of Type I bicycle parking may be placed adjacent to such an area. (Ord. No. 29-20, § 3, 11-10-20)
(d)
Bicycle racks shall not interfere with the sight visibility requirements of Land Development Regulation 4.6.14 (B). Placement of racks shall also not be placed in sight visibility triangles of County, State, or Federal rights-of-way as required by 4.6.14 (B) (5). (Ord. No. 29-20, § 3, 11-10-20)
(e)
Type II Bicycle Parking. A Type II Bicycle Parking space is an access restricted space providing for the long-term storage of bicycles, typically greater than four hours or overnight. Types of Type II bicycle parking include bicycle lockers or an enclosed, secure room. Generally, bike rooms are adjacent to showers, if required. (Ord. No. 29-20, § 3, 11-10-20)
(f)
If required, showers and Type II bicycle parking shall be co-located in a building and provided in a safe, access restricted area or otherwise not accessible to the public at large. Design shall consider crime prevention as a part of design. Specifications for these facilities shall be included within the site plan. (Ord. No. 29-20, § 3, 11-10-20)
(E)
Location of parking spaces. Required off-street parking shall generally be provided on the same lot or parcel as the building and uses for which it is required. (Ord. No. 14-24, § 5, 12-10-24)
(1)
Street parking, parking located in the public right-of-way, or parking located in public parking facilities shall not be used to satisfy on-site parking requirements, except as provided for herein. The terms "on-site parking" and "off-street parking" are synonymous. [Amd. Ord. 58-06 10/17/06; Amd. Ord. 74-04 1/18/05; Amd. 53-02 1/7/03; Amd. Ord. 4-99 2/2/99] (Ord. No. 14-24, § 5, 12-10-24)
(2)
Construction of new on-street public parking spaces directly and wholly abutting the lot, or parcel, shall be credited towards the off-street parking requirement of the lot or parcel it is intended to serve on a one-to-one basis, provided: (Ord. No. 14-24, § 5, 12-10-24)
(a)
The parking spaces are identified on the site plan and designed in accordance with applicable City, County or State standards. (Ord. No. 14-24, § 5, 12-10-24)
(b)
The parking spaces shall be publicly accessible and cannot be reserved or restricted by the owner(s) or tenant(s) of the lot or parcel, unless approved by the City Commission for special events or valet parking. (Ord. No. 14-24, § 5, 12-10-24)
(c)
The parking spaces shall not extend past a side property line of the lot it serves. (Ord. No. 14-24, § 5, 12-10-24)
(d)
Parking spaces located on the opposite side of the right-of-way, and within the property lines, as extended to the opposite side of the right-of-way, may be counted toward fulfilling the off-street parking requirement when the adjacent lot is a railroad or waterway, and does not warrant parking. (Ord. No. 14-24, § 5, 12-10-24)
(e)
In the event the City, County, or State removes the parking spaces at any time for a public purpose, the property shall be considered legally nonconforming with respect to parking. (Ord. No. 14-24, § 5, 12-10-24)
(3)
Off-site parking. In instances where uses do not have sufficient space to accommodate customer and employee parking demands on-site, required parking may be provided off-site in accordance with the following: [Amd. Ord. 79-05 1/3/06; Amd. Ord. 46-96 11/5/96] (Ord. No. 14-24, § 5, 12-10-24)
(a)
Normal operations. Parking for day-to-day operation may be provided on other property within 300 feet provided that both properties are of the same general type of zone designation (i.e. commercial, industrial, office, etc.) or when the off-site parking site is zoned CF and a conditional use approval for use as a parking lot has been approved, and when in compliance with, and pursuant to, the following: (Ord. No. 14-24, § 5, 12-10-24)
1.
The 300-foot distance shall be measured along an acceptable pedestrian route; [Amd. Ord. 46-96 11/5/96] (Ord. No. 14-24, § 5, 12-10-24)
2.
Approval of such off-site parking may be granted by the body which has approval authority of the related site and development plan; [Amd. Ord. 46-96 11/5/96] (Ord. No. 14-24, § 5, 12-10-24)
3.
An agreement providing an easement for such use is prepared pursuant to Subsection (E)(3)(c) and is recorded prior to certification of the site and development plan; [Amd. Ord. 46-96 11/5/96] [Amd. Ord. 42-92 9/8/92] (Ord. No. 14-24, § 5, 12-10-24)
4.
The provision of the parking easement shall not diminish the ability of the property upon which it is placed, to accommodate its required parking. [Amd. Ord. 46-96 11/5/96] (Ord. No. 14-24, § 5, 12-10-24)
(b)
Special events/facilities. In instances where uses and/or facilities have large parking demands/requirements and are otherwise subject to conditional use approval (e.g. stadiums, places of assembly, community and civic centers, recreational areas, etc.), such parking may be provided off-site in accordance with the following: (Ord. No. 14-24, § 5, 12-10-24)
1.
Off-site parking may be granted by the body with approval authority of the related conditional use. [Amd. Ord. 46-96 11/5/96] (Ord. No. 14-24, § 5, 12-10-24)
2.
A parking and transportation plan must be provided that identifies parking areas and demonstrates the manner in which transportation to the site, security, maintenance, and related matters will be accommodated. [Amd. Ord. 46-96 11/5/96] (Ord. No. 14-24, § 5, 12-10-24)
3.
Easements, agreements, or other appropriate legal documents assuring continued availability of such parking shall be required as a part of the parking and transportation plan. [Amd. Ord. 46-96 11/5/96] [Amd. Ord. 42-92 9/8/92] (Ord. No. 14-24, § 5, 12-10-24)
(c)
Off-site parking agreement. The owner of the alternate off-street parking area and the owner of the principal use or building (including the land on which it is situated), shall enter into a written agreement with the City (in such form as may be approved by the City Attorney), providing that the alternate off-street parking area shall never be disposed of except in conjunction with the transfer or sale of the building that the parking area is intended to serve, so long as the parking facilities are required. The agreement shall constitute a covenant running with the land binding upon the owners, heirs, administrators, successors, and assigns, and shall be enforceable by the City. The agreement shall be recorded by the City Clerk, with the owner of the principal use or building bearing the costs of recordation. The agreement shall be released by the Commission at such time as the alternate off-street parking facilities are no longer required or when the owner provides other lawful off-street parking facilities. The owner of the principal use or building shall bear the expense of recording the release of the agreement. [Amd. Ord. 79-05 1/3/06] (Ord. No. 14-24, § 5, 12-10-24)
(4)
Location and Spacing Requirements for Bicycle Parking. Bicycle parking shall be placed in a manner to avoid conflicts between vehicles, buildings, and pedestrian clear zones or sidewalks. Bicycles are considered for site planning purposes to be six feet long by two feet wide. (Ord. No. 29-20, § 3, 11-10-20; Ord. No. 14-24, § 5, 12-10-24)
(a)
Type I. Type I bicycle parking facilities shall be visible to the intended users within a location shown on the site plan that meets the following standards: (Ord. No. 29-20, § 3, 11-10-20)
1.
All bicycle parking shall be provided in a safe, accessible and convenient location within 100 feet of a primary building entrance; when there is more than one primary building entrance or multiple buildings on a site, bicycle parking shall be distributed to serve all main entrances. The acting body may approve bicycle parking spaces located further than 100 feet from the primary building entrance if the applicant demonstrates this requirement is not feasible and does not create an unsafe condition or permit a special privilege. (Ord. No. 29-20, § 3, 11-10-20)
2.
Bicycle parking shall not be placed on walkways or other pedestrian paths. (Ord. No. 29-20, § 3, 11-10-20)
(b)
Type I Bicycle Rack Placement in Site Design. All bicycle racks shall meet the minimum distances for placement according to the City Standards published by the Public Works Department on a Site Plan. (Ord. No. 29-20, § 3, 11-10-20)
(c)
Bicycle racks placed at bus shelters shall use City of Delray Beach Standard Bicycle Rack. (Ord. No. 29-20, § 3, 11-10-20)
(d)
Unless otherwise provided by law, residential condominium covenants are encouraged not to prohibit the storage of bicycles inside individual dwelling units. (Ord. No. 29-20, § 3, 11-10-20)
(F)
Special provisions.
(1)
Reduction allowed. When, upon receipt and acceptance of special documentation, it is conclusively demonstrated that a reduced number of parking spaces will accommodate a specific use, the body which acts on the attendant site plan may reduce the parking requirements accordingly. [Amd. Ord. 46-96 11/5/96]
(2)
Temporary use of parking spaces for other purposes. Parking lots may be used for the sale of merchandise on a temporary basis for special events. Request for such approval shall be governed by Section 2.4.6(H).
(3)
Valet parking. A parking facility with a valet service or operator which allows for attendants to receive, park and deliver the automobiles of occupants, tenants, customers, invitees, and visitors, including tandem parking may be utilized in lieu of the requirements of this Section provided the following requirements are complied with: [Amd. Ord. 37-01 7/10/01]
(a)
Any required valet or tandem parking utilized in lieu of the parking requirements set forth in this section shall be governed by an agreement with the City (in such form as may be approved by the City Attorney), and recorded in the public records of Palm Beach County. The agreement shall constitute a covenant running with the land binding upon the owners, heirs, administrators, successors, and assigns. The agreement may be released by the City Commission at such time that site plan approval is obtained for an alternative parking arrangement which satisfies the parking requirements for said use. [Amd. Ord. 37-01 7/10/01]
(b)
The required queue is to be provided on private property as opposed to public rights-of-way. [Amd. Ord. 37-01 7/10/01]
(c)
There is a parking professional available for the vehicle retrieval during business hours. [Amd. Ord. 37-01 7/10/01]
(d)
The dimensions for valet and tandem parking spaces shall be a minimum of eight and one-half feet wide and 16 feet deep with a maximum stacking of two vehicles along with a drive aisle of 24 feet. [Amd. Ord. 37-01 7/10/01]
(e)
Valet parking may be utilized to conform with the number of handicap accessible parking spaces provided that: [Amd. Ord. 37-01 7/10/01]
(i)
At least two handicapped accessible spaces are provided adjacent to the vehicle queuing area for those vehicles which cannot be operated by the parking professional; and, [Amd. Ord. 37-01 7/10/01]
(ii)
The disabled person's vehicle may be safely operated by aforementioned parking professional. [Amd. Ord. 37-01 7/10/01]
(f)
Valet drop-off/queuing area must be provided with a minimum length of 100 feet. Greater queuing area may be required as a condition of site plan or conditional use approval based upon the intensity of the use. The length of the queuing area may be reduced when supported by a traffic study.
(g)
Interior landscape areas required by Section 4.6.16 shall not be required if landscape requirements which would otherwise have been installed on the interior of the parking lot are evenly distributed along the perimeter of the parking area or facility and subject to the following requirements: [Amd. Ord. 37-01 7/10/01]
(i)
That a ten feet perimeter landscape buffer consisting of a hedge and trees 30-feet on center be provided. [Amd. Ord. 37-01 7/10/01]
(4)
Mechanical parking lifts. [Section Added by Ord. 34-07 9/18/07]
(a)
Any mechanical lift parking utilized to meet parking requirements set forth in sections 4.4.13 and 4.6.9 shall be governed by an agreement with the City (in such form as may be approved by the City Attorney), and recorded in the public records of Palm Beach County. The agreement shall constitute a covenant running with the land, binding upon the owners, heirs, administrators, successors, and assigns. The agreement may be released by the City Commission at such time that site plan approval is obtained for an alternative parking arrangement which satisfies the parking requirements for said use.
(G)
In-Lieu of Parking Fee. (Ord. No. 14-24, § 5, 12-10-24)
(1)
Purpose. The in-lieu of parking fee is an incentive to promote historic preservation, to maintain the moderate scale of the downtown, and to encourage revitalization and adaptive reuse by providing an alternative method to meet off-street parking requirements. (Ord. No. 14-24, § 5, 12-10-24)
(2)
Eligible Requests. The in-lieu of parking fee is available in the following areas, subject to limitations and exceptions in Subsection (3) below. (Ord. No. 14-24, § 5, 12-10-24)
(a)
Central Business (CBD) District Zoning District. (Ord. No. 14-24, § 5, 12-10-24)
1.
Within the West Atlantic Neighborhood Sub-district (Figure 4.4.13-B-2. Regulating Plan). (Ord. No. 14-24, § 5, 12-10-24)
2.
Within the Railroad Corridor Sub-district (Figure 4.4.13-B-3), except for the area located both south of SE 2 nd Street and west of the FEC Railway. (Ord. No. 14-24, § 5, 12-10-24)
3.
Within the Central Core Sub-district in the area located south of NE 4 th Street, north of SE 2 nd Street, and west of NE and SE 6 th Avenue, as well as the properties designated with Required Retail Frontage located east of 6 th Avenue. (Ord. No. 14-24, § 5, 12-10-24)
(b)
Historic Sites and Districts. Individually designated properties or structures, contributing structures, or non-contributing structures at least 35 years in age located within a historic district with Central Business (CBD) District or Old School Square Historic Arts District (OSSHAD) zoning. (Ord. No. 14-24, § 5, 12-10-24)
(3)
Limitations and exceptions. In-lieu of parking fees may be approved subject to the findings in Section 2.4.11(F) with the following limitations and exceptions: (Ord. No. 14-24, § 5, 12-10-24)
(a)
Required parking for residential development or residential components of mixed-use developments, including required guest parking, is not eligible for the in-lieu of parking fee option. (Ord. No. 14-24, § 5, 12-10-24)
(b)
All nonresidential parking required due to a change in commercial use of a building existing as of December 10, 2024, or associated outdoor use area, can be provided by in-lieu of parking fees. (Ord. No. 14-24, § 5, 12-10-24)
(c)
Non-historic properties. A maximum of 30 percent of nonresidential required parking can be provided by in-lieu of parking fees for additions and/or new development resulting in a building not more than a total of two stories in height or for the expansion of outdoor use areas. (Ord. No. 14-24, § 5, 12-10-24)
(d)
Historic sites and districts. As defined in Subsection (G)(2)(b) above, all nonresidential required parking can be provided by in-lieu of parking fees for use conversions, expansion of outdoor use areas, and additions resulting in buildings that are not more than a total of two stories in height. (Ord. No. 14-24, § 5, 12-10-24)
(e)
Where adequate right-of-way, as determined by the City, exists adjacent to a proposed project for which an in-lieu of parking fee has been requested, the applicant must construct additional on-street parking, not to exceed the total number of spaces subject to in-lieu of parking fees. The number of on-street parking spaces provided shall offset the in-lieu of parking fee on a one-to-one basis. (Ord. No. 14-24, § 5, 12-10-24)
(4)
Approved in-lieu of parking fee requests shall credit subsequent occupants of the building with the same number of spaces toward required parking. (Ord. No. 14-24, § 5, 12-10-24)
Editor's note— Ord. No. 29-20, § 3, adopted November 10, 2020, repealed and replaced subsection 4.6.9(C)(1)(c) which pertained to similar subject matter and derived from Ord. 46-96, adopted November 5, 1996 and Ord. 03-15, adopted February 24, 2015.
Editor's note— Ord. No. 11-20, § 3, adopted December 8, 2020, repealed and replaced subsection 4.6.9(D)(3), which pertained to similar subject matter and derived from Ord. 22-92, adopted June 16, 1992; Ord. 46-96, adopted November 5, 1996; and Ord. 12-13, adopted August 20, 2013.
Editor's note— Ord. No. 60-20, § 2, adopted December 8, 2020, in effect repealed subsection 4.6.9(D)(8) and enacted a new subsection 4.6.9(D)(8) as set out herein and later amended. Former subsection 4.6.9(D)(8) pertained to similar subject matter and derived from Ord. 19-91, adopted April 9, 1991; Ord. 46-96, adopted November 5, 1996; and Ord. No. 11-20, adopted December 8-20
(A)
Rule. Space for accommodating the unloading of merchandise, inventory, materials, supplies, and produce shall be provided on the site where a use which requires such items is located. Provisions for such (un)loading areas shall be shown on the site and development plan under which the site is to be developed.
(B)
Determination of adequacy. The body approving the site plan associated with the proposed development shall determine the adequacy of the provisions which are made for (un)loading. In making such a determination, the standards and guidelines of this Section shall be considered. The final determination may result in accommodations in excess of or less than such guidelines, or in the waiving of any such accommodations.
(C)
Guidelines. The following table sets forth guidelines which shall be used in determining adequacy of loading accommodations. In circumstances where these guidelines are not applicable or appropriate, the applicant may provide a "loading demand statement" in which the normal demands for loading are set forth along with any restrictions which may be appropriate.
(D)
Dimensions and location.
(1)
Dimensions.
(2)
Locations. Where the entrance of a building is designed for loading and unloading operations, such entry shall provide, at least, one loading space. Otherwise loading areas shall not be located so as to create confusion or conflict with other use areas e.g. dumpster locations.
Outside storage of materials, supplies, products, vehicles, and the like shall only be as allowed for, within the requirements of each individual zoning district. Uses which are allowed out-of-doors are further identified in Section 4.6.6. All items which are stored outside of structures shall be screened.
The operation of all uses allowed herein must also fully comply with the requirements and conditions of the City's industrial and hazardous waste disposal regulations as set forth in Chapter 53 of the City Code.
(A)
Prohibitions and restrictions in residential districts.
(1)
It shall be unlawful for any agent, operator, owner, or person in charge of any bus, pole trailer, semi-trailer, trailer, trailer coach, truck, truck trailer, or industrial equipment, to park, store, or keep such motor vehicle on any public street, avenue, alley, or other thoroughfare, or any right-of-way within any residential zoning district in the city, for a period exceeding one hour in any 24-hour period. Each such period shall commence at the time of first stopping or parking, unless a permit is first obtained from the Police Department.
(2)
Unless otherwise provided for, it shall be unlawful for the owner, agent, or operator of the motor vehicles and industrial equipment set forth herein, or the owner of property in any residential zoning district in the city, to park on, or cause to be parked on, or allow to be parked on any residential property in the city, or in the streets, alleys, or parkways abutting the property, any bus, pole trailer, semi-trailer, trailer, trailer coach, truck, truck trailer, or industrial equipment, for a period exceeding one hour in any 24-hour period. Each such period shall commence at the time of first stopping or parking, unless a permit is first obtained from the Police Department, or as otherwise provided for in new references.
(3)
The restrictions of subsections (1) and (2) above shall not apply to the temporary parking of such vehicles on private property in residential zoning districts, whereon construction is underway. A current and valid building permit issued by the city must be properly displayed on the premises.
(4)
The restrictions of subsections (1) and (2) above of one hour in residential zoning districts shall not apply to routine deliveries by tradesmen, or the use of trucks in making service calls, providing such time in excess of one hour is actually in the course of business deliveries or servicing.
(5)
The restrictions of subsections (1) and (2) above shall not apply to vehicles which become disabled, and as a result of such emergency are required to be parked within a residential zoning district longer than one hour. Any disabled vehicle, however, shall be removed from the residential zoning district within 24 hours, by a wrecker if necessary, regardless of the nature of the emergency.
(B)
Permissible parking.
(1)
Trucks. Truck parking in residential zoning districts is prohibited except if all of the following restrictions are met: [Amd. Ord. 25-99 7/20/99]
(a)
Only panel, pickup, van, and similar type trucks are allowed in all residential zoning districts. [Amd. Ord. 25-99 7/20/99]
(b)
In the R-1-A district, such trucks shall not exceed one and one-half (1 ½) ton rated capacity, except in the R-1-A zoned section included within the Seacrest/Del-Ida Neighborhood Plan, where such trucks shall not exceed three-quarter-ton rated capacity. In all other residential zoning districts, such trucks shall not exceed three-quarter-ton rated capacity. [Amd. Ord. 25-99 7/20/99]
(c)
No more than two trucks may be parked on a lot improved with a residence. For the purposes of Section 4.6.13(B)(1), a lot includes the property on which the residence is located and any adjacent lot which is under the control of the owner or lessee of the residence. Parking on vacant lots is otherwise prohibited. [Amd. Ord. 25-99 7/20/99]
(d)
Only trucks as defined in this section and used by a resident of the premises are allowed. [Amd. Ord. 25-99 7/20/99]
(2)
One boat, one boat trailer, and one recreational vehicle may be parked in a garage or carport which is effectively screened on three sides, provided no portion of the boat, boat trailer, or recreational vehicle extends beyond the roof line.
(3)
One boat, one boat trailer, and one recreational vehicle may be parked in the side or rear yard provided the plot is occupied by a permitted structure. Such boat, boat trailer, or recreational vehicle shall be effectively screened against direct view from abutting properties in the following manner: by a masonry wall, ornamental fence, or dense hedge, six feet high or equal to the height of the vehicle if the vehicle is less than six feet high. If a hedge is used as the method of screening, the hedge should be three feet at the time of planting and should be of a variety which can reasonably be expected to reach the required height within two years. This regulation is not to be construed as requiring screening from direct view from the street in front of the plot.
(4)
Such boat, boat trailer, or recreational vehicle must be owned and used by a resident of the premises.
(5)
No boat or recreational vehicle which is parked in a residential district shall be occupied or used for living, sleeping, or housekeeping purposes, nor shall it be connected to any utility service.
(6)
A boat, boat trailer, or recreational vehicle may be parked only if it is currently registered as required by state or federal law, and if the transportation of the vehicle is in compliance with F.S. Chapter 317.
(7)
One boat, one boat trailer, or one recreational vehicle may be parked in the front driveway for a 24-hour period for the purpose of loading or unloading.
(8)
No boat, boat trailer, or recreational vehicle shall be parked in the area between the street and the structure.
(A)
Purpose and intent. The objective of these requirements is to provide sufficient view corridors for safe interaction of vehicles and pedestrians at intersections. Except for sight visibility areas as prescribed by the Florida Department of Transportation, sight visibility triangles are to be measured from the edge of pavement for driveways and from the ultimate right-of-way line of alleys and streets. The sight visibility areas apply to all potential visual obstructions, including, but not limited to, landscaping, signs, utilities, traffic signal controller cabinets, structures, walls, access gates, and fences, etc. (Ord. No. 11-20, § 4, 12-8-20)
(B)
Sight visibility triangle measurements.
(1)
Driveway intersecting street or alley. The area on both sides of a driveway formed by the intersection of a driveway and a street or alley with a length of ten feet along the driveway, a length of ten feet along the street or alley right-of-way and the third side being a line connecting the ends of the other two lines.
(2)
Alley intersecting street. The area formed by the intersection of an alley and a street with a length of ten feet along the alley right-of-way, a length of 20 feet along the street right-of-way, and the third side being a line connecting the ends of the other two lines.
(3)
Rights-of-way intersecting in Central Business District. Within the Central Business District (CBD), the area formed by the intersection of two or more street rights-of-way with two sides of the triangular area being twenty (20) feet in length along each street, measured from their point of intersection, and the third side being a line connecting the ends of the other two lines.
(4)
Rights-of-way intersecting in single family residential areas. For single family residential zoned property the area of the property located at the corner formed by the intersection of two public rights-of-way with two sides of the triangular area being 25 feet in length along the abutting public right-of-way lines, measured from their point of intersection, and the third side being a line connecting the ends of the other two lines.
(5)
Rights-of-way in county, state or federal jurisdiction. Sight visibility measurements at the intersection of a right-of-way, accessway, or driveway and a right-of-way under County, State or Federal jurisdiction are subject to sight visibility requirements from those authorities.
(6)
Other intersections. In all other situations, the area of property located at a corner formed by the intersection of two or more public rights-of-way with two sides of the triangular area being 40 feet in length along the abutting public right-of-way lines, measured from their point of intersection, and the third side being a line connecting the ends of the other two lines.
(C)
Intersections. When an access way intersects a public right-of-way, all visual obstructions within the sight visibility triangle shall provide unobstructed cross-visibility at a level between three feet and six feet. Trees or palms having canopy limbs, foliage and fronds shall be maintained in such a manner that cross visibility is provided. One tree or palm shall be permitted, providing the mature trunk diameter does not exceed 15 inches. Trees shall not be located within six feet from the edge of any uncurbed access way pavement. Trees may have a four-foot offset from the face of a non-mountable type curb.
(D)
Landscape nodes. All trees or palms installed in nodes within a right-of-way shall maintain a four foot offset from the face of the curb. All shrubs and ground covers shall be maintained below 36 inches in height. All tree canopies must be maintained above eight feet in height. The mature trunk diameter of any tree or palms shall not exceed 15 inches. There shall be no encroachment of trees, tree limbs or palm fronds in or over a travel lane lower than 14.5 feet or lower than eight feet over a sidewalk. Private property owners shall be responsible for maintaining landscaping on their property that encroach into these areas.
(E)
Relief. The request for a relief from the sight visibility triangle dimensions may be granted by the City Engineer on a case-by-case basis and the review shall take into consideration neighborhood characteristics such as the locations of schools, parks, and other community facilities, and street characteristics such as the pavement width, width of the right-of-way to curb or sidewalk, curvature of the street, one-way directional traffic, presence of on-street parking spaces, speed limit and other similar elements. Denial of relief by the City Engineer may be appealed to the City Commission.
(A)
Enclosures required for private pools. All private or family type pools, except those defined in (D) of this Section, shall be enclosed by fence or other enclosures so that the premises upon which the pool is located is enclosed from adjoining yards or property.
(B)
Prerequisite to approval; specifications.
(1)
No swimming pool final inspection and approval shall be given by the Building Department, unless there has been erected a safety barrier as hereinafter provided.
(2)
The safety barrier shall take the form of a screened-in patio, a wooden fence, a wire fence, a rock wall, concrete block wall, or other materials so as to enable the owner to blend the same with the style of architecture planned or in existence on the property. The safety barrier which shall not be less than 48 inches in height, shall be erected either around the swimming pool or around the premises on which the swimming pool is erected. In either event, it shall enclose the area entirely, prohibiting unrestrained admittance to the enclosed area, except that where the entire premises are fenced, and one side fronts on either the Intracoastal waterway, a finger canal, or the ocean, then no fence shall be required along that side fronting the water. All gates must be self-latching with latches placed four feet above the underlying ground or otherwise made inaccessible from the outside to small children; however, the door of any dwelling forming part of the enclosure hereinabove required need not be so equipped.
(C)
Responsibility for, plans to show compliance.
(1)
No person in possession of property within the city, either as owner, purchaser, lessee, tenant, or a licensee, upon which is presently situated a swimming pool or a family pool having a minimum depth of 24 inches as determined hereinabove shall fail to provide and maintain a fence or wall as herein provided.
(2)
No building permit shall be issued for the construction of a family pool unless there is clearly shown on the plans submitted to the City Building Official or on other construction specifications submitted to the City Building Official provisions to comply with this section
(D)
Modification of requirements by Commission.
(1)
The City Commission may make modification in individual cases, upon a showing of good cause with respect to the height, nature, or location of the fence, wall, gates, or latches, or the necessity therefor, or may permit other protective devices or structures in lieu thereof. In making these modifications or special exceptions, the City Commission shall be governed by the following standards: The purpose of the fencing requirement herein is to prevent small children from inadvertently wandering into family swimming pools.
(2)
The Commission realizes that there are locations within the city where an unfenced family pool would not create an obvious hazard. In these areas where, due to the nonexistence of a substantial number of small children, no obvious hazard exists, the City Commission may grant modifications or special exceptions and may even dispense with the requirement for fencing. All decisions shall be conditional and subject to revocation in the event circumstances or conditions change in the particular location.
(E)
Requirements not to affect other provisions of Code. Although the provisions of this section are limited in applicability, nothing contained herein shall diminish or otherwise abate the applicability, force, and effect of provisions which allow that a dangerous excavation in the earth may be considered a public nuisance under certain circumstances or any ordinances regulating the construction, use, or maintenance of swimming pools or family pools.
(F)
Exemption for commercial pools; insurance required. All pools connected with commercial ventures such as motels, and the like, within the city, and otherwise guarded or under surveillance by competent and responsible personnel shall not be covered by this Section. However, the owners of those operations shall be required to maintain adequate liability insurance policies covering those pools in an amount of not less than $100,000.00 through $300,000.00 coverage, if they choose not to erect a protective fence as described herein.
(G)
Yard encroachment. Swimming pools at grade level are allowed to encroach into the required setbacks as follows. (Ord. No. 13-24, § 4, 7-9-24)
(1)
Conventional single-family lots. (Ord. No. 13-24, § 4, 7-9-24)
(a)
Swimming pools may extend into the rear, interior or street side setback areas but no closer than ten feet to any property line. Swimming pools shall not extend into the front setback area required by Section 4.3.4(K). [Amd. Ord. 24-04 5/18/04]; [Amd. Ord. 41-92 9/8/92]; [Amd. Ord. 13-91 2/26/91] (Ord. No. 13-24, § 4, 7-9-24)
(b)
When adjacent to at least 50 feet of common open area, as defined in Section 4.3.4(H)(5), swimming pools may extend into the rear or interior side setback area, no closer than five feet to the property line. [Amd. Ord. 24-04 5/18/04]; [Amd. Ord. 41-92 9/8/92] (Ord. No. 13-24, § 4, 7-9-24)
(c)
A screened pool enclosure shall not be permitted to encroach into side and rear setback areas except as allowed in Section 4.3.4(H)(5). [Amd. Ord. 24-04 5/18/04]; [Amd. Ord. 41-92 9/8/92] (Ord. No. 13-24, § 4, 7-9-24)
(2)
Zero lot line developments. (Ord. No. 13-24, § 4, 7-9-24)
(a)
Swimming pools may extend into the interior side setback no closer than five feet from the property line. (Ord. No. 13-24, § 4, 7-9-24)
(b)
A swimming pool may extend no closer than five feet from the rear property line, except along the perimeter of the development where a 10 foot setback is required, unless adjacent to at least 50 feet of common open area as defined in Section 4.3.4(H)(5). [Amd. Ord. 24-04 5/18/04] (Ord. No. 13-24, § 4, 7-9-24)
(3)
Townhouse developments. Swimming pools in townhouse developments may have a five foot side interior setback. (Ord. No. 13-24, § 4, 7-9-24)
(4)
Swimming pools are prohibited in dedicated easements unless written approval of the easement holder is obtained and a hold harmless agreement is executed. [Amd. Ord. 24-04 5/18/04] (Ord. No. 13-24, § 4, 7-9-24)
(A)
Purpose and intent. The objective of this Section is to improve the appearance of setback and yard areas in conjunction with the development of commercial, industrial, and residential properties, including off-street vehicular parking and open-lot sales and service areas in the City, and to protect and preserve the appearance, character and value of the surrounding neighborhoods and thereby promote the general welfare by providing minimum standards for the installation and maintenance of landscaping. This Section is further intended to fulfill objectives as contained within the Conservation, Sustainability, and Resiliency Element of the adopted Comprehensive Plan, by providing for the conservation of potable and non-potable water; the implementation of Florida-friendly landscaping principles; proper tree selection adjacent to or within utilities to mitigate damages which may be caused by trees; encouraging the creation or preservation of open space; maintaining permeable land areas essential to surface water management and aquifer recharge; encouraging the preservation of existing plant communities; encouraging the planting of site specific, native and drought tolerant plant materials; establishing guidelines for the installation and maintenance of landscape materials and irrigation systems; reducing air, noise, heat, and chemical pollution through the biological filtering capacities of trees; reducing the temperature of the microclimate through the process of evapotranspiration; and promoting energy conservation through the creation of shade. (Ord. No. 23-20, § 35, 9-10-20)
The provisions of this Section are minimum standards which may be increased in accordance with the guidelines contained herein as well as aesthetic criteria established by the Site Plan Review and Appearance Board and the Historic Preservation Board when applicable. Additional landscape requirements may be required for certain zoning districts and roadways as provided for elsewhere in these regulations. [Amd. Ord. 6-12 2/21/12]; [Amd. Ord. 50-98 1/5/99] (Ord. No. 23-20, § 35, 9-10-20)
(B)
Applicability. The provisions of this Section shall apply as follows:
(1)
To the construction of single family homes, for which a building permit is applied for on or after October 1, 1990. Such properties shall comply with minimum standards set forth in Section 4.6.16(H)(1) and other applicable sections of 4.6.16; [Amd. Ord. 22-96 5/21/96]
(2)
To existing development of all types, including, but not limited to, commercial, industrial and multi-family development including duplexes, but excluding single family detached dwellings on a single lot. Such development shall comply with the minimum standards set forth within Sections 4.6.16(C)(1) and 4.6.16(H)(6) and other applicable Sections of 4.6.16, in addition to all requirements set forth in the approved landscape plan of record. [Amd. Ord. 6-12 2/21/12]; [Amd. Ord. 22-96 5/21/96]
(3)
To any new development, or any modification of existing development. That portion of the site which is being newly developed or modified must comply with the requirements contained herein; [Amd. Ord. 22-96 5/21/96]
(4)
To any modification to existing development which results in an increase of 25 percent in the gross floor area of the structure, or structures, situated on the site. In such cases the entire site shall be upgraded to present landscape standards; [Amd. Ord. 22-96 5/21/96]
(C)
Compliance, review, appeal, and relief. [Amd. Ord. 22-96 5/21/96]
(1)
Compliance.
(a)
Prior to the issuance of a building permit for a structure or a paving permit, compliance with the requirements of Section 4.6.16 shall be assured through the review and approval of a landscape plan submitted pursuant to Section 2.4.3(C), including the following, if applicable: [Amd. Ord. 6-12 2/21/12]; [Amd. Ord. 22-96 5/21/96]
1.
A landscape permit, which shall be required for all work whose landscape improvement valuation is greater than $1,000.00. [Amd. Ord. 6-12 2/21/12]
(b)
Prior to upgrading landscaping on an existing site, a landscape plan shall be submitted which shall: [Amd. Ord. 22-96 5/21/96]
1.
Be drawn to scale consistent with the site plan with crowded areas provided in a larger scale presentation. [Amd. Ord. 22-96 5/21/96]
2.
Clearly delineate the existing and proposed parking spaces or other vehicular use areas, access aisles, sidewalks, building locations and similar features. [Amd. Ord. 22-96 5/21/96]
3.
Clearly show property lines and all Right-of-Ways adjacent to existing property to be improved. [Amd. Ord. 6-12 2/21/12]
4.
Contain a Statement of Intent as to the method and coverage of irrigation (irrigation systems require a separate permit; See Section 4.6.16(F) for additional irrigation regulations). [Amd. Ord. 6-12 2/21/12]; [Amd. Ord. 22-96 5/21/96]
5.
Designate by name and location the plant material to be installed or preserved. [Amd. Ord. 22-96 5/21/96]
6.
Show location of overhead lines and utility easements. [Amd. Ord. 22-96 5/21/96]
7.
Show proposed or existing locations of refuse areas and methods of screening. [Amd. Ord. 22-96 5/21/96]
8.
Show proposed or existing locations of free standing signs. [Amd. Ord. 22-96 5/21/96]
9.
Provide an Existing Tree Survey documenting all trees with a caliper equal to or greater than four inches. All trees shall have a number or symbol that is referenced in a table. This table shall be shown on the Existing Tree Survey and shall document the botanical and common name, caliper, height and spread and overall condition for each tree. [Amd. Ord. 6-12 2/21/12]
10.
Show landscape calculations in a legible tabular format. The type of calculations used will be determined by the property use. Single family dwellings shall utilize the Single family dwelling calculations. Duplexes shall utilize the Duplex calculations. Multi-family, Industrial and Commercial use properties shall utilize the Multi-family/Industrial/Commercial calculations. [Amd. Ord. 6-12 2/21/12]
11.
Show proposed plant material in a tabular form. Include botanical and common names, specifications, quantity and symbol (if applicable). [Amd. Ord. 6-12 2/21/12]
12.
Be accompanied by a Landscape Cost Estimate when proposed landscape improvements are valued at $1,000.00 or more. Landscape improvements include the cost of material, labor and profit. [Amd. Ord. 6-12 2/21/12]
13.
Label all plant material to be of Florida # 1 grade or better as illustrated in the Grades and Standards for Nursery Plants, Part 1 (current edition) by the Florida Department of Agriculture. All material that is graded lower than Florida #1 quality shall be rejected. [Amd. Ord. 6-12 2/21/12]
14.
Show all sight triangles in their proper locations. See Section 4.6.14. [Amd. Ord. 6-12 2/21/12]
15.
Be prepared, signed and sealed by a Registered Landscape Architect. Exceptions include Single Family and Duplex Dwellings located in Single Family Zoning Districts that are not within an Overlay District that requires them to be prepared by a Registered Landscape Architect. [Amd. Ord. 6-12 2/21/12]
(c)
The final completion of landscaping prior to issuance of the Certificate of Occupancy. All landscaping and related items shall be installed in accordance with this section before the Certificate of Occupancy is issued. [Amd. Ord. 6-12 2/21/12]
(2)
Review. Landscape plans of existing properties shall be reviewed by City Staff as appointed by the Chief Building Official. The purpose of the review of landscape plans for existing duplex, industrial, commercial and multi-family properties is to determine if the plans meet the minimum required standards. [Amd. Ord. 6-12 2/21/12]; [Amd. Ord. 22-96 5/21/96]
(3)
Appeals. Appeal from the City Staff shall be to the Site Plan Review and Appearance Board or the Historic Preservation Board as applicable. Appeal from the Site Plan Review and Appearance Board or the Historic Preservation Board shall be to the City Commission. [Amd. Ord. 6-12 2/21/12]; [Amd. Ord. 22-96 5/21/96]
(4)
Relief. Relief from the provisions of this Section shall only be granted through the waiver process [Section 2.4.7(B)] by the City Commission, Site Plan Review and Appearance Board or Historic Preservation Board as applicable. [Amd. Ord. 22-96 5/21/96]; [Amd. Ord. 83-95 01/09/96]
(D)
Site planning and design requirements. The following site design standards, concepts, and practices shall be adhered to in the preparation of landscape plans. [Amd. Ord. 6-12 2/21/12]
(1)
Concepts for water conservation. Creative site development concepts shall be used in order to promote water conservation. Water requirements may be reduced by providing for:
(a)
The preservation of existing native plant communities;
(b)
The re-establishment of native plant communities;
(c)
The use of site specific plant materials;
(d)
The use of shade trees to reduce transpiration rates of lower story plant materials;
(e)
Limited amounts of lawn grass areas;
(f)
Site development that retains storm runoff on site;
(g)
The use of pervious materials for non-landscaped and parking areas.
(2)
Preservation and promotion of existing plant communities. All existing native plant communities on sites proposed for development shall be preserved where possible through their incorporation into the required open space. Existing plant communities that are specified to remain shall be preserved to the greatest extent possible with trees, understory, and ground covers left intact and undisturbed, except for the eradication of prohibited plant species.
(a)
Tree protection. Trees which are to be preserved on a site shall be protected from damage during the construction process according to appropriate tree protection techniques. The "Tree Protection Manual for Builders and Developers" published by the Division of Forestry of the State of Florida, Department of Agriculture and Consumer Service, shall be the standard for determining the appropriateness of proposed techniques. All trees which are to be preserved and do not survive shall be replaced by a tree of equal size or an equivalent number of trees based on trunk diameter. [See Section 3.4.6(G) re Tree Removal Permits]
(b)
Portion of native communities to remain. When natural plant communities occur on a parcel of land which is to be developed, at least 25 percent of the required open space must be in the form of preserved natural plant communities.
(c)
Native species required. A portion of all plant materials required to be planted shall be native species. The percentage of native plant materials required shall be as follows:
(i)
Effective October 1, 1990, 25 percent of required trees and 25 percent of all other required plant materials shall be native;
(ii)
Effective October 1, 1991, 35 percent of the required trees and 25 percent of all other required plant materials shall be native;
(iii)
Effective October 1, 1992, 50 percent of the required trees and 25 percent of all other required plant materials shall be native.
(d)
Substitution of mature, exceptional tree specimens for required parking. The intent of this section is to preserve those selected mature trees that are not able to be located in required landscape areas while maintaining a reasonable level of off-street parking for new or expanding multi-family, commercial, and industrial developments or redevelopments, as the preservation of these trees, in most instances, is of higher order than providing the exact amount of required off-street parking. [Amd. Ord. 2-02 2/5/02]
The City may require or the applicant may request the substitution of existing, mature, healthy, exceptional tree specimens for required parking spaces in instances where the following conditions are met: [Amd. Ord. 2-02 2/5/02]
1.
Such trees are of a hardwood and/or deciduous variety and a minimum of 12 inches in diameter measured one foot above grade. [Amd. Ord. 2-02 2/5/02]
2.
Such trees are free of disease and insects. [Amd. Ord. 2-02 2/5/02]
3.
Every effort has been made in planning and design of parking areas to accommodate such trees in the landscape islands required in Section 4.6.16(H)(3). [Amd. Ord. 2-02 2/5/02]
4.
Such trees are protected during construction as prescribed in Section 4.6.16(D)(2)(a). [Amd. Ord. 2-02 2/5/02]
The applicant shall indicate on the site plan the location of all required parking spaces and indicate those spaces that will be eliminated in order to preserve trees. The amount of parking spaces permitted to be eliminated for any project shall be determined on a case by case basis. [Amd. Ord. 2-02 2/5/02]
The Historic Preservation Board (HPB) or Site Plan Review and Appearance Board (SPRAB), as appropriate, may approve such requests or require such preservation provided the conditions of this subsection are met. [Amd. Ord. 2-02 2/5/02]
A decision of HPB or SPRAB disapproving a request for or requiring tree preservation may be appealed to the City Commission pursuant to LDR Section 2.4.7(E). [Amd. Ord. 2-02 2/5/02]
All tree(s) which are to be preserved under this section and do not survive shall be replaced by a tree a minimum of 18 feet in height with a ten-foot spread of canopy. The City Horticulturist shall approve such replacements. [Amd. Ord. 2-02 2/5/02]
(3)
Site specific planting materials. Trees and other vegetation used in the landscape design should be appropriate to the conditions in which they are planted, to the greatest extent, they shall be:
(a)
Salt tolerant relative to the area in which they are planted;
(b)
Able to withstand reduced water conditions if planted in sandy soils;
(c)
Able to withstand wet conditions when planted around retention/ detention ponds or in swales;
(d)
Deleted. [Amd Ord. 50-98 1/5/99]
(4)
Tree selection adjacent to or within utility easements. Required perimeter landscape buffers often coincide with utility easements. Careful selection of tree species is essential to minimize conflicts as trees mature. Trees planted subsequent to the effective date of this ordinance shall meet the following criteria: [Amd. Ord. 50-98 1/5/99]
(a)
The ultimate mature height and width of a tree to be planted should not exceed the available overhead growing space. Tree species shall be consistent with the recommendation in the most recent publication of Florida Power and Light Company's "Plant The Right Tree In The Right Place" (copies available from the Community Improvement Department), which provides recommendations for tree selections. [Amd. Ord. 50-98 1/5/99]
(b)
Trees shall not be planted within ten feet of any underground utilities. [Amd. Ord. 50-98 1/5/99]
(c)
Trees shall have non-invasive growth habits which will not interfere with adjacent above/underground utilities. [Amd. Ord. 50-98 1/5/99]
(E)
Landscape design standards. The following shall be considered the minimum standards for the design and installation of all plant materials. (Ord. No. 11-23, § 3, 9-5-23)
(1)
Florida-friendly landscape principles. Florida-friendly landscape principles shall be utilized in landscape designs and installations including planting the right tree or plant in the right place, efficient watering, appropriate fertilization, mulching, the use of plant materials that attract wildlife, responsible management of yard pests, recycling yard waste, reduction of stormwater runoff, and waterfront protection. Important considerations include: [Amd. Ord. 6-12 2/21/12] (Ord. No. 11-23, § 3, 9-5-23)
(a)
Appropriate planning and design that considers the size, shape, and sun orientation of the lot, soil type, topography, intended use of area and site specific planting to minimize irrigation waste. (Ord. No. 11-23, § 3, 9-5-23)
(b)
Soil analysis and appropriate preparation to provide better absorption of water and beneficial plant nutrients. (Ord. No. 11-23, § 3, 9-5-23)
(c)
Efficient irrigation systems that permit turf and other less drought tolerant plantings to be watered separately from more drought tolerant plantings, consideration of low volume drip, spray or bubbler emitters for trees, shrubs and ground covers. (Ord. No. 11-23, § 3, 9-5-23)
(d)
Reduction of turf areas and the installation of low water demand shrubs and living ground covers in conjunction with organic mulches. (Ord. No. 11-23, § 3, 9-5-23)
(e)
Utilization of drought tolerant plant materials and the grouping of plants with similar water requirements.
(f)
Application of mulches to increase moisture retention, reduce weed growth and erosion and increase the organic content of soil upon degradation. Mulch should be initially applied at a three inch depth, but pulled away from direct contact with stems and trunks to avoid rotting. Mulched planting beds are an ideal replacement for turf areas. (Ord. No. 11-23, § 3, 9-5-23)
(2)
Installation. All landscaping shall be installed according to sound horticultural and planting procedures with the quality of plant materials herein described. Landscaping shall be installed to meet all applicable ordinances and code requirements. (Ord. No. 11-23, § 3, 9-5-23)
(3)
Vehicular encroachment. There shall be no vehicular encroachment into any required landscape area. All landscape areas adjacent to parking spaces, accessways, and/or vehicular use areas shall be separated by carstops or non-mountable, reinforced concrete curbing of the type characterized as "Type D" in the State of Florida Department of Transportation roadway design manuals, or curbing of comparable durability. In the case of curbing around required landscaped islands, the width of the curbing shall be excluded from the calculation of the minimum dimensions of the required island. Landscape islands are required to be a minimum of nine feet in width exclusive of the curb width. In paved parking lots, the portion of the parking space extending beyond the car stop may be sodded, and vehicles may encroach into the area. [Amd. Ord. 6-12 2/21/12] (Ord. No. 11-23, § 3, 9-5-23)
(4)
Quality. All plant materials shall conform to the Standards for Florida No. 1 or better as identified in "Grades and Standards for Nursery Plants" by the State of Florida Department of Agriculture and Consumer Services. (Ord. No. 11-23, § 3, 9-5-23)
(5)
Trees. All tree species shall have an average mature spread of crown greater than 20 feet and trunks that can be maintained in a clean condition with over six feet of clear mature wood. If necessary, a grouping of tree species with an average mature spread of crown less than 20 feet may be substituted so as to create the equivalent of a 20 foot spread of crown. Tree species shall be a minimum of 16 feet in overall height at the time of planting, with a minimum of six feet of single straight trunk with eight feet of clear trunk, and a seven-foot spread of canopy. Tree species required for single family homes and duplexes shall be a minimum of 12 feet in overall height at the time of planting, with a minimum of four feet of single straight trunk with six feet of clear trunk, and a six-foot spread of canopy. [Amd. Ord. 6-12 2/21/12] (Ord. No. 11-23, § 3, 9-5-23)
When more than ten trees are required, a mix of species shall be provided. The number of species shall vary according to the overall number of trees required. This species mix requirement shall not apply to areas of vegetation required to be preserved by law. The minimum number of species is as follows: (Ord. No. 11-23, § 3, 9-5-23)
(6)
Palms. Palms may be used for up to 50 percent of the required trees. Palms considered susceptible to lethal yellowing by the Florida Department of Agriculture shall not be used to fulfill the requirements of this article. (Ord. No. 11-23, § 3, 9-5-23)
(a)
Palms must have an overall height of a minimum of 16 feet and a minimum of eight feet of clear trunk at the time of planting, except for single family homes and duplexes, which may have palms with an overall height of a minimum of 12 feet and a minimum of six feet of clear trunk at the time of planting. (Ord. No. 11-23, § 3, 9-5-23)
(b)
Palms with a mature spread of crown of at least 15 feet, including Canary Date Palms, Bismark Palms, Coconut Palms and Royal Palms may be credited on a one for one basis with shade trees. Coconut Palms are permitted to have a minimum of two feet of grey wood at the time of planting, providing they are located so that the fronds are not hazardous. Palm species that do not have a mature spread of crown of at least 15 feet shall be grouped in threes, and three palms shall equal one shade tree. (Ord. No. 11-23, § 3, 9-5-23)
(c)
Minimum overall palm height may be increased if the palm variety has fronds that hang below an eight-foot clearance, and are located in an area where pedestrians may be adversely affected by the fronds. (Ord. No. 11-23, § 3, 9-5-23)
(7)
Shrubs and hedges. All shrubs and hedges shall be a minimum of two feet in height when measured immediately after planting. Hedges shall be planted and maintained to form a continuous, unbroken, solid, visual screen within a maximum of one year after planting. (Ord. No. 11-23, § 3, 9-5-23)
(a)
Shrubs shall be spaced a maximum of two feet, center to center, unless plants are exceptionally full, in which case the shrubs shall be permitted to be planted up to a maximum of 30 inches, center to center, provided the branches are touching at the time of planting. (Ord. No. 11-23, § 3, 9-5-23)
(b)
Hedges must be allowed to attain height of 36 inches except where providing adequate and safe sight distance requires them to be maintained at a 30-inch height. (Ord. No. 11-23, § 3, 9-5-23)
(c)
Hedges required for screening shall meet the following expectations: [Amd. Ord. 6-12 2/21/12] (Ord. No. 11-23, § 3, 9-5-23)
[Amd. Ord. 6-12 2/21/12] (Ord. No. 11-23, § 3, 9-5-23)
(8)
Lawn grass. The irrigation of turf or sod lawn areas is a major source of water demand. Therefore, the use of laws areas is regulated as follows: (Ord. No. 11-23, § 3, 9-5-23)
(a)
Maximum Coverage. Portions of landscaped areas that have been customarily designed as lawns shall be: Preserved as natural plant communities; planted as redeveloped native areas; or planted in traditional mixes of trees, shrubs, and ground covers. [Amd. Ord. 81-91 12/3/91] (Ord. No. 11-23, § 3, 9-5-23)
(i)
Commercial, industrial and multi-family developments. No more than 70 percent of the combination of the required interior greenspace and the required perimeter landscape buffers, shall be planted in lawn grass. The balance shall be planted in a mix of shrubs and ground covers. [Amd. Ord. 6-12 2/21/12]; [Amd. Ord. 81-91 12/3/91] (Ord. No. 11-23, § 3, 9-5-23)
(ii)
Single family and duplex residences. No more than 80 percent of the pervious lot area shall be planted in lawn grass. A minimum of 20 percent of the pervious lot area shall be planted in shrubs and ground covers. [Amd. Ord. 6-12 2/21/12; Amd. Ord. 81-91 12/3/91] (Ord. No. 11-23, § 3, 9-5-23)
(b)
Maintenance. Lawn grass shall be clean and reasonably free of weeds and noxious pests or diseases. When grass areas are to be seeded, sprigged or plugged, specifications must be submitted to and approved by the City. One hundred percent coverage must be achieved within 90 days. (Ord. No. 11-23, § 3, 9-5-23)
(c)
Mandatory Sod Usage. Solid sod must be used in swales, canal banks, rights-of-way and other areas subject to erosion. (Ord. No. 11-23, § 3, 9-5-23)
(9)
Ground cover: Ground covers used in lieu of grass, in whole or part, shall be planted at such spacing to present a finished appearance and reasonably complete coverage within six months after planting. All ground cover areas must be kept free from weeds. (Ord. No. 11-23, § 3, 9-5-23)
(10)
Vines: Vines shall be a minimum of 30 inches in height immediately after planting and may be used in conjunction with fences, screens, or walls to meet physical barrier requirements as specified. (Ord. No. 11-23, § 3, 9-5-23)
(11)
Organic Mulches: Organic mulches may be used in combination with living plants as part of a landscape design, however, organic mulches shall not by themselves constitute landscaping. No more than 25 percent of a front or side street setback may be comprised of mulch independent of living plant materials. [Amd. Ord. 6-12 2/21/12] (Ord. No. 11-23, § 3, 9-5-23)
(12)
Artificial Turf. Artificial turf is allowed on both residential and non-residential properties, subject to the following requirements: (Ord. No. 11-23, § 3, 9-5-23)
(a)
General. (Ord. No. 11-23, § 3, 9-5-23)
(i)
The installation of artificial turf requires a landscape permit. (Ord. No. 11-23, § 3, 9-5-23)
(ii)
Artificial turf areas may not be included in open space calculations. (Ord. No. 11-23, § 3, 9-5-23)
(iii)
Artificial turf is considered pervious but cannot be used within permanent drainage features, including ponds and swales. (Ord. No. 11-23, § 3, 9-5-23)
(iv)
Artificial turf shall not be installed closer than five feet to the property line. (Ord. No. 11-23, § 3, 9-5-23)
(v)
Artificial turf shall not be installed in or be visible from a public or private right-of-way. (Ord. No. 11-23, § 3, 9-5-23)
(vi)
Artificial turf may be used in combination with living plants as part of a landscape design, but artificial turf shall not by inset constitute landscaping. (Ord. No. 11-23, § 3, 9-5-23)
(b)
Locational criteria. (Ord. No. 11-23, § 3, 9-5-23)
(i)
Residential and commercial uses. Residential and commercial properties are subject to the following additional criteria: (Ord. No. 11-23, § 3, 9-5-23)
1.
After building coverage, hardscaping areas, and minimum open space requirement areas are subtracted from the total lot area, no more than 15 percent of the remaining lot area may be comprised of artificial turf. (Ord. No. 11-23, § 3, 9-5-23)
2.
Artificial turf is allowed in rear and interior side yards, and in side street yards when shielded from view. Artificial turf may also be used in conjunction with driveway pavers. (Ord. No. 11-23, § 3, 9-5-23)
(ii)
Recreational uses. Artificial turf is allowed in recreational use areas, and is not required to be shielded from view. (Ord. No. 11-23, § 3, 9-5-23)
(iii)
Historic. On properties located within a Historic District or on Individually Designated Sites, as listed on the Local Register of Historic Places, artificial turf is only allowed in rear and side yards and must be shielded from view. (Ord. No. 11-23, § 3, 9-5-23)
(c)
Materials and installation. .....All artificial turf must comply with the following minimum standards for materials and installation. (Ord. No. 11-23, § 3, 9-5-23)
(i)
The artificial turf system shall be lead-free, and use recycled or organic plant-derived materials and natural infill components, including, but not limited to, cork, coconut, corn husk, rice husk, and sand. The use of crumb rubber and other synthetic materials shall be prohibited in all applications except for sports fields. Documentation must be provided that identifies all recyclable or natural components of the artificial turf system. (Ord. No. 11-23, § 3, 9-5-23)
(ii)
Permit applications shall include Total Content Leach Protocol (TCLP) test documentation demonstrating that the artificial turf yarn and backing materials are disposable under normal conditions at any U.S. landfill station. (Ord. No. 11-23, § 3, 9-5-23)
(iii)
A minimum eight-year manufacturer's warranty is required. (Ord. No. 11-23, § 3, 9-5-23)
(iv)
All artificial turf shall be installed over a subgrade that provides positive drainage and an evenly graded mass of compacted, porous crushed rock aggregate material. Bases may not be comprised of sand only. Proper drainage shall be provided for all artificial turf installations to prevent runoff or pooling of water. (Ord. No. 11-23, § 3, 9-5-23)
(v)
Artificial turf must be designed and permitted with a minimum permeability of 30 inches per hour per square yard. (Ord. No. 11-23, § 3, 9-5-23)
(vi)
Artificial turf must have lifelike individual blades of grass that emulate natural turf or sod lawn areas with the grain pointing in a single direction, and no visible seams. (Ord. No. 11-23, § 3, 9-5-23)
(vii)
Artificial turf shall not be installed directly against the trunk of trees or palms. A three-foot mulch bed measured from the base of the tree or palm must be maintained. Installation around existing trees shall be monitored and may be restricted to ensure that the overall health of the tree will not be compromised. (Ord. No. 11-23, § 3, 9-5-23)
(viii)
An in-progress inspection shall be required to ensure that the appropriate base material has been installed to manufacturer specifications. A final inspection shall also be required. (Ord. No. 11-23, § 3, 9-5-23)
(d)
Maintenance. Artificial turf shall be maintained free of dirt, mud, stains, weeds, debris, tears, holes, impressions, and fading. Maintenance shall include, but not be limited to cleaning, brushing, debris removal, repairs of depressions and ruts to maintain a visually-level surface; elimination of any odors, flat or matter areas, weeds, and invasive roots, and maintenance of edges. (Ord. No. 11-23, § 3, 9-5-23)
(F)
Irrigation requirements. All landscaped areas shall be provided with a fully automated sprinkler system that will provide complete coverage of all plant materials and grass to be maintained. All systems shall be designed to allow for head-to-head coverage (100-percent coverage with 100-percent overlap). Low-volume irrigation systems, such as drip or micro-irrigation systems, are strongly encouraged. [Amd. Ord. 6-12 2/21/12]
(1)
Watering restrictions. The Landscape Irrigation Restrictions set forth by the South Florida Water Management District (SFWMD), as amended, are hereby adopted and incorporated as if set forth. [Amd. Ord. 6-12 2/21/12]
(2)
Irrigation of existing plant communities. Existing plant communities and ecosystems, maintained in a natural state, do not require and shall not have any additional irrigation water added in any form.
(3)
Reestablished native plant areas. Native plant areas that are supplements to an existing plant community or newly installed by the developer may initially require additional water to become established. The water required during the establishment period shall be applied from a temporary irrigation system, a water truck or by hand watering from a standard hose bib source.
(4)
Irrigation design standards and practices. The following standards shall be considered the minimum requirements for landscape irrigation design: [Amd. Ord. 6-12 2/21/12]
(a)
All landscaped areas shall be provided with a fully automated sprinkler system that will provide complete coverage of all plant materials and grass to be maintained. The use of recycled water is encouraged. [Amd. Ord. 6-12 2/21/12]
(b)
All new installations of landscape irrigation systems and substantial modifications of existing irrigation systems which use well water, excluding single family residences, shall install, operate and maintain rust inhibitor equipment to prevent staining of structures and pavements. [Amd. Ord. 30-93 4/13/93]
(c)
Wherever feasible, sprinkler heads irrigating lawns or other high water demand landscape areas shall be circuited so they are on a separate zone or zones from those irrigating trees, shrubbery or other reduced water requirement areas.
(d)
Automatically controlled irrigation systems shall be operated by an irrigation controller that is capable of watering high water requirement areas on a different schedule from low water requirement areas.
(e)
Sprinkler heads shall be installed and maintained so as to minimize spray upon any public access, sidewalk, street or other non-pervious area.
(f)
The use of low trajectory spray nozzles is encouraged in order to reduce the effect of wind velocity on the spray system.
(g)
The use of low volume or drip systems is encouraged.
(h)
All new installations of landscape irrigation systems, and modifications of existing irrigation systems, shall be equipped with a rain sensing device which will override the irrigation cycle of the system when adequate rainfall has occurred. Further, these rain sensing devices must be operated and maintained for the life of the irrigation system. [Amd. Ord. 30-93 4/13/93]
(i)
The use of pop-up sprinkler heads is required in the swale area between the property line and the edge of pavement of the adjacent right-of-way to minimize pedestrian hazard.
(j)
The plant palette and irrigation system shall be appropriate for site conditions, taking into account that, in some cases, soil improvement can enhance water use efficiency. [Amd. Ord. 6-12 2/21/12]
(k)
Plants shall be grouped together by irrigation demand. [Amd. Ord. 6-12 2/21/12]
(l)
The percentage of landscaped area in irrigated high water use hydrozones should be minimized. Landscape plans shall depict the different hydrozones and irrigate according to demand. [Amd. Ord. 6-12 2/21/12]
(m)
All irrigation systems shall meet current Best Management Practices as established by the most current version of the Florida Green Industries Best Management Practices Handbook, including the uniform distribution of water throughout all zones. [Amd. Ord. 6-12 2/21/12]
(n)
Irrigation plan shall meet the following requirements: [Amd. Ord. 6-12 2/21/12]
(1)
Scale of drawing shall be consistent with Site and Landscape Plans. [Amd. Ord. 6-12 2/21/12]
(2)
Show location of existing and proposed buildings, paving, and site improvements. [Amd. Ord. 6-12 2/21/12]
(3)
Show locations of Water Meter, Point of Connection (POC), Backflow Preventer, Controller, Pump, Zone Valves, Rain shutoff device, Rust-inhibiting device (if applicable), Main and Lateral Lines, Sprinkler Heads and Sleeves. [Amd. Ord. 6-12 2/21/12]
(o)
An irrigation legend shall be shown on irrigation plan. The irrigation legend will have the following elements: Separate symbols for all irrigation equipment with different spray patterns and precipitation rates and pressure compensating devices; general description of equipment; manufacturer's name and model number for all specified equipment; recommended operating pressure per nozzle and bubbler and low-flow emitter; manufacturer's recommended overhead and bubbler irrigation nozzle rating in gallons per minute or gallons per hour for low flow point applicators; minimum (no less than 75 percent of maximum spray radius) and maximum spray radius per nozzle; and manufacturer's rated precipitation rate per nozzle at specified per square inch. [Amd. Ord. 6-12 2/21/12]
(G)
Prohibited and controlled species.
(1)
Prohibited plant species. All prohibited plant species shall be eradicated from the development site and reestablishment of prohibited species shall not be permitted. The following plant species shall not be planted in the City of Delray Beach:
(a)
Melalecua quinquenervia (commonly known as Punk tree, paper bark, Cajeput, Melaleuca); or
(b)
Schinus terebinthifolius (commonly known as Brazilian Pepper or Florida Holly); or
(c)
Casuarina Species (commonly known as Australian Pine); or
(d)
Acacia auriculiformis (commonly known as Earleaf Acacia); or [Amd. Ord. 6-12 2/21/12]
(e)
Cupianopsis anacardioides (commonly known as Carrotwood); or [Amd. Ord. 6-12 2/21/12]
(f)
Schefflera actinophylla (commonly known as Schefflera or Umbrella tree); or [Amd. Ord. 6-12 2/21/12]
(g)
Bischofia javanica (commonly known as Bischoffia). [Amd. Ord. 6-12 2/21/12]
(2)
Controlled plant species. Ficus species can be planted as individual trees provided they are no closer than 12 feet from any public improvement. Ficus species may be planted within 12 feet of any public improvements only if they are maintained as a hedge which is constantly cultivated and does not exceed six feet in height if located within a setback area. Height may be permitted to reach eight feet when planted on a residential project and used to separate the residential use from an arterial or collector road right-of-way.
Ficus hedges located on private property are allowed to exceed the eight-foot maximum height limit so long as the respective property owner shows documentation that these hedges were taller than eight feet on or before January 31, 2012. [Amd. Ord. 6-12 2/21/12]
(H)
Minimum landscape requirements.
(1)
Single family detached residences. The following minimum standards for landscaping shall apply: (Ord. No. 11-23, § 3, 9-5-23)
(a)
One shade tree shall be planted for every 2,500 square feet of lot area. Shade trees for single family residences shall be a minimum of 12 feet in height with a five-foot spread at the time of installation. Existing trees preserved on the site with the same specifications as above, may be credited toward this tree requirement. [Amd. Ord. 6-12 2/21/12]
(b)
Shrubs shall be installed along the foundation of the side of the residence that faces any street.
(c)
Air-conditioning units five feet or less in height shall be screened with shrubbery or wood fencing tall enough to fully screen the units from view. Units higher than five feet above grade shall be screened with hedges that are half of the height of the unit, but no less than five feet in height. [Amd. Ord. 6-12 2/21/12] (Ord. No. 11-23, § 3, 9-5-23)
(d)
All other lot areas not covered by driveways or structures shall be planted with lawn grass or approved ground cover. (Ord. No. 11-23, § 3, 9-5-23)
(e)
The area between the property line and the edge of pavement of the abutting right-of-way shall be sodded. Rock, gravel, mulch, or artificial turf is expressly prohibited from being used in the right-of-way. (Ord. No. 11-23, § 3, 9-5-23)
(f)
All refuse container storage areas visible from an adjacent street must be screened with fencing, hedging, and an opaque gate in conjunction with hedging. (Ord. No. 11-23, § 3, 9-5-23)
(g)
All landscaped areas shall be provided with an irrigation system, automatically operated, to provide complete coverage of all plant materials and grass to be maintained. The source of water may be either from City water or non-potable water. The use of recycled water is encouraged.
(2)
Duplex residential development.
(a)
One tree shall be planted for every 2,000 square feet of lot area or fraction thereof. Existing trees preserved on the site may be credited toward this tree requirement. [Amd. Ord. 6-12 2/21/12]
(b)
In addition, in consideration of the fact that some duplex units have back-out parking, and no direct screening can be achieved between the parking and street area, hedging and a shade tree will be required to be installed on both sides of the back-out parking area.
(c)
A strip of land a minimum of five feet in width shall be provided around the foundation of the building where it faces the right-of-way and along the side of the building that provides entry for the units and shall be landscaped with shrubs and ground covers. All other lot areas not covered by buildings or paving will be landscaped with sod, shrubs or ground covers.
(d)
In addition the area between the property line and the edge of pavement of the abutting right-of-way shall be provided with sod, irrigation and maintenance.
(e)
All air-conditioning units and other mechanical equipment and refuse areas whose height is five feet or less shall be screened with shrubbery that is tall enough to fully screen the units from view. Equipment five feet to 16 feet above grade shall be screened with hedges that are half of the height of the item to be screened. In such instances, the required hedge shall not be any less than five feet in height. Anything higher than 16 feet shall be screened with shrubbery that is a minimum of eight feet in height. [Amd. Ord. 6-12 2/21/12]
(f)
For duplexes that have a parking lot that does not require back-out parking, the screening specified for new multi-family units provided below shall be required.
(3)
New multiple family, commercial, and industrial development. Multi-family, commercial, industrial and all other uses are required to comply with the minimum requirements for off-street parking. On the site of a building or open-lot use providing an off-street parking, storage or other vehicular use area, where such an area will not be screened visually by an intervening building or structure from an abutting right-of-way or dedicated alley, there shall be provided landscaping as follows:
Perimeter requirements adjacent to public and private rights-of-way:
(a)
A strip of land at least five feet in depth located between the off-street parking area or other vehicular use area and the right-of-way shall be landscaped, provided, however, that should the zoning code of the Delray Code of Ordinances require additional perimeter depths, that the provisions of the zoning code shall prevail. This landscape strip shall be free of any vehicular encroachment, including car overhang. The landscaping shall consist of at least one tree for each 30 linear feet or fraction thereof. The trees shall be located between the right-of-way line and the off-street parking or vehicular use area. Where the depth of the perimeter landscape strip adjacent to the right-of-way exceeds 15 feet, shade trees may be planted in clusters, but the maximum spacing shall not exceed 50 feet. The remainder of the landscape area shall be landscaped with grass, ground cover, or other landscape treatment excluding pavement.
Additionally, a hedge, wall or other durable landscape area shall be placed along the interior perimeter of the landscape strip. If a hedge is used, it must be a minimum of two feet in height at the time of planting and attain a minimum height of three feet above the finished grade of the adjacent vehicular use or off-street parking area within one year of planting.
Multiple tier plantings are strongly encouraged for all properties, regardless of the depth of the landscape buffer. Those properties that have a landscape buffer depth of ten feet or more shall be required to provide an additional layer of groundcover. The groundcover shall be located directly in front of the required hedge, so as to be visible from the adjacent right-of-way. This groundcover shall be installed at one-half of the height of the required perimeter hedge. [Amd. Ord. 6-12 2/21/12]
If a nonliving barrier is used, it shall be a minimum of three feet above the finished grade of the adjacent vehicular use. Nonliving barriers shall require additional landscaping to soften them and enhance their appearance. For each ten feet of nonliving barrier, a shrub or vine shall be planted along the street side of the barrier, in addition to tree requirements.
Earth berms may be used only when installed in conjunction with sufficient plant materials to satisfy the screening requirements. The slope of the berm shall not exceed a 3:1 ratio.
Hedges for multi-family projects which are used to separate a residential use from an adjacent arterial or collector road right-of-way may attain a height of eight feet to mitigate the impact of the adjacent roadway
Perimeter hedging installed to effect screening of storage areas must be a minimum of 75 percent of the height of the storage structure at the time of installation and be permitted to grow to a height to conceal the materials being stored. Perimeter shade trees are required to be planted every 30 feet and are not permitted to be clustered. [Amd. Ord. 6-12 2/21/12]
(b)
The unpaved portion of the right-of-way adjacent to the property line shall be landscaped with sod and provided with irrigation and maintenance.
(c)
The width of accessways which provide access to a site or vehicular use areas may be subtracted from the linear dimensions used to determine the number of trees required.
Perimeter landscaping requirements relating to abutting properties:
(d)
A landscaped barrier shall be provided between the off-street parking area or other vehicular use area and abutting properties. The landscape barrier may be two feet at the time of planting and achieve and be maintained at not less than three nor greater than six feet in height to form a continuous screen between the off-street parking area or vehicular use area and such abutting property. This landscape barrier shall be located between the common lot line and the off-street parking area or other vehicular use area in a planting strip of not less than five feet in width that is free of any vehicular encroachment, including car overhang. Duplexes may be permitted to reduce the perimeter planting strip to two and one-half feet in width in cases where lot frontage is less than 55 feet. In addition, one tree shall be provided for every 30 linear feet of such landscaped barrier or fraction thereof. [Amd. Ord. 6-12 2/21/12]
(e)
Where any commercial or industrial areas abut a residential zoning district or properties in residential use, in addition to requirements established for district boundary line separators in the zoning code, one tree shall be planted every 25 feet to form a solid tree line.
(f)
The provisions for perimeter landscape requirements relating to abutting properties shall not be applicable where a proposed parking area or other vehicular use area abuts an existing hedge or established tree line, the existing hedge and trees may be used to satisfy the landscape requirements provided the existing material meets all applicable standards. The landscape strip, a minimum of five feet in depth, however, is still required, and must be landscaped with sod or ground cover and be free of any vehicular encroachment, including car overhang. If the existing landscaping does not meet the standards of this article, additional landscaping shall be required as necessary to meet the standards. In the event that the landscaping provided by the adjacent property which has been used to satisfy the landscaping requirements for the property making application is ever removed, the property heretofore using the existing vegetation to satisfy landscaping requirements, must then install landscaping as required to comply with the provisions of this code. Interior landscape requirements for parking and other vehicular use areas: [Amd. Ord. 6-12 2/21/12]
(g)
The amount of interior landscaping within off-street parking areas shall amount to no less than ten percent of the total area used for parking and accessways.
(h)
There shall be a group of palms or a shade tree for every 125 square feet of required interior landscaping. No more than 25 percent of these required trees shall be palms.
(i)
Landscape islands which contain a minimum of 135 square feet of planting area, with a minimum dimension of nine feet, exclusive of the required curb, shall be placed at intervals of no less than one landscaped island for every 13 standard parking spaces. One shade tree shall be planted in every island with a minimum of 75 square feet of shrubs and groundcovers. Tree specifications shall adhere to those listed in Section 4.6.16(E)(5) and 4.6.16(E)(6). Where approval for the use of compact parking has be approved, islands may be placed at intervals of no less than one island for every 15 compact parking spaces: [Amd. Ord. 6-12 2/21/12]
1.
The distance between parking islands can be increased up to 15 standard or 17 compact parking spaces but the width of the parking island must be increased by one foot for each additional space (i.e. if the distance between parking islands is 15 standard parking spaces the parking island would have to be 11 feet wide). [Amd. Ord. 6-12 2/21/12]
i.
Properties within the Central Business District (CBD) shall adhere to the same landscape island width stated above, unless documentation of site constraints provide that such island width is not feasible. In such cases, the City will accept landscape islands with a minimum width of seven feet, exclusive of curb, with 105 square feet of planting area. Under no circumstances shall any landscape island have a width smaller than seven feet, exclusive of curb. Tree specifications shall adhere to those listed in Section 4.6.16(E)(5) and 4.6.16(E)(6). Minimum tree height shall be increased to 18 feet in overall height with an eight-foot spread if the option to increase the number of parking spaces between landscape islands is chosen. [Amd. Ord. 6-12 2/21/12]
2.
Unobstructed cross-visibility shall be maintained at all terminal landscape islands where it intersects a right-of-way. Clear visibility shall be maintained between three feet to six feet above ground. Proper plant selection shall be utilized that fully accounts for the mature height and spread of that plant. The proper design shall have low groundcovers within the nose of the island with small shrubs located at the back end of the island. [Amd. Ord. 6-12 2/21/12]
(j)
Each row of parking spaces shall be terminated by landscape islands with dimensions as indicated above. An exception to this requirement is when a landscaped area, with the dimensions above, exists at the end of the parking row. [Amd. Ord. 6-12 2/21/12]
(k)
Whenever parking tiers abut, they shall be separated by a minimum five-foot wide landscape strip. This strip shall be in addition to the parking stall and be free of any vehicular encroachment, including car overhang. In addition, a two-foot hedge shall be installed within this landscape strip and run the entire length of the strip. Pedestrian walkways are permitted to allow passage through the hedge. Nonmountable curbs are not required for these landscaping strips, providing carstops are provided. [Amd. Ord. 6-12 2/21/12]
(l)
Perimeter landscape strips which are required to be created by this code or requirements of the zoning code shall not be credited to satisfy any interior landscaping requirements, however, the gross area of perimeter landscape strips which exceed minimum requirements may be credited to satisfy the interior landscape requirements of this section.
(m)
Interior landscaping in both parking areas and other vehicular use areas shall, insofar as possible, be used to delineate and guide major traffic movement within the parking area so as to prevent cross-space driving wherever possible. A portion of the landscaping for interior parking spaces, not to exceed 25 percent of the total requirement, may be relocated so as to emphasize corridors or special landscape areas within the general parking area or adjacent to buildings located on the site, if helpful in achieving greater overall aesthetic effect. Such relocated landscaping shall be in addition to the perimeter landscaping requirements.
(n)
Existing native soil within all landscape islands, interior landscape strips and perimeter landscape strips, adjacent to vehicular use areas, shall be excavated down to a depth of 30 inches below existing grade, except for a 12-inch buffer from the inside of curb or pavement (see diagram below). A suitable planting soil mixture of 50/50, 60/40 (sand/topsoil) or as otherwise indicated by the Registered Landscape Architect, shall either be backfilled in place of the native soil or efficiently mixed with the native soil to create an optimum environment for successful root development. If native soil is to be mixed, it shall first be screened to remove rocks and debris larger than one-half inch in diameter prior to mixing. All properties under this section shall be required to have an open landscape bed inspection prior to backfilling to insure the 30-inch depth has been met. [Amd. Ord. 6-12 2/21/12]
(o)
All air-conditioning units and other mechanical equipment and refuse areas whose height is five feet or less shall be screened with shrubbery that is tall enough to fully screen the units from view. Equipment five feet to 16 feet above grade shall be screened with hedges that are half of the height of the item to be screened. In such instances, the required hedge shall not be any less than five feet in height. Anything higher than 16 shall be screened with shrubbery that is a minimum of eight in height. [Amd. Ord. 6-12 2/21/12]
(p)
Landscaping may be permitted in easements only with the written permission of the easement holder. Written permission shall be submitted as part of the site plan or landscape plan review.
(4)
Foundation landscaping requirements. [Amd. Ord. 6-12 2/21/12]
(a)
Foundation landscaping shall be required. This shall incorporate trees, shrubs and groundcovers with the minimum required specifications as set forth in 4.6.16(E). Multiple tiers of plant material should be utilized and thoughtfully designed to accomplish the goal of softening the building mass while adding vibrant color and textures. [Amd. Ord. 6-12 2/21/12]
(b)
New multi-story structures or landscape improvements to existing multi-story structures shall adhere to the landscape requirements set forth in this section. The purpose of these requirements is to aesthetically and visually buffer larger structures and to maintain an appropriately scaled relationship between the height of the structure and its surrounding landscape.
(i)
Foundation trees with specifications listed in Table 1 shall be planted along the building façade that faces a Right-of-Way, except in the CBD zoning district where alternate landscaping configurations have been incorporated into the Frontage Standards in Section 4.4.13(E). [Amd. Ord. 03-15 02/24/2015]
(ii)
The spacing of these trees shall be determined based on the average canopy width of the proposed tree. These trees shall be spaced appropriately so that the canopies shall be touching at average maturity.
(iii)
Typical Foundation trees and spacing requirements are listed in Table 2. All trees listed in Table 2 are examples. Other species may be used so long as the spacing meets the intent of this section. [Amd. Ord. 6-12 2/21/12]
Table 1. Foundation Tree Specifications [Amd. Ord. 6-12 2/21/12]
Table 2. Typical Foundation Trees and Spacing Requirements [Amd. Ord. 6-12 2/21/12]
(5)
Special landscape regulations for properties within the Central Business District (CBD). [Amd. Ord. 6-12 2/21/12]
(a)
Landscape Islands shall be installed within designated On-Street Parking locations. Properties submitting for Site Plan Modifications that are designated as Class IV or higher are required to install on-street landscape islands. Site Plan Modifications that are classified as Class III or lower that are proposing on street landscape islands shall adhere to the requirements outlined in this section. All islands are to be curbed with Type 'F' curbing to protect plant material. There are three types of landscape islands found within designated on-street parking sites. They are Intersection Islands, Driveway Islands and Parallel Parking Islands. [Amd. Ord. 6-12 2/21/12]
1.
Intersection Islands are required at the corners of intersecting streets. These islands shall be a minimum of ten feet in length. One palm tree and associated understory plantings shall be located in each island and shall not pose a hazard to site visibility. If applicable, each palm shall be located behind traffic signs. Species and size to be consistent with those existing within adjacent on-street parking islands. [Amd. Ord. 6-12 2/21/12]
2.
Driveway Islands are required on each side of the driveway apron leading into the property. These islands shall be a minimum of eight feet in length. One accent tree or palm and associated understory plantings shall be located in each island and shall not pose a hazard to site visibility. Species and size to be consistent with those existing within adjacent on-street parking islands. [Amd. Ord. 6-12 2/21/12]
3.
Parallel Parking Islands shall be used to break up large expanses of pavement utilizing shade-producing canopy trees and associated understory plantings. No more than six parallel parking spaces are allowed between the nearest parallel parking island and the subject property submitting for a Site Plan Modification. Spaces will be counted from the nearest street intersection. Each island shall be a minimum of 22 feet in length and contain at least one canopy tree and associated understory plantings. Species and size to be consistent with those existing within adjacent on-street parking islands.
Properties abutting Atlantic Avenue are exempt from the requirement of constructing on-street landscape islands. The maintenance and irrigating of islands shall be the sole responsibility of the property owner who is located adjacent to these islands. Construction of landscape islands shall not create traffic safety hazards. The utilization of root barriers will be required in instances where underground utilities are present. All compacted soil, rock and other debris shall be removed to a depth of 30 inches below top of curb and replaced with a 60/40 mixture of sand to topsoil.
Existing site conditions will be examined during the plan review process. Flexibility for location and size of islands will be considered in achieving the overall goal of creating a consistent and unified streetscape. [Amd. Ord. 6-12 2/21/12]
(6)
Street trees for new residential developments. [Amd. Ord. 6-12 2/21/12] A themed landscape is very important for creating unity and common character within residential developments. Street trees are an integral component of creating a themed landscape and shall be required as per this section. All trees shall be in accordance with Section 4.6.16(E)(5). Tree selection shall be approved by City Staff. One street tree shall be required for every 40 linear feet of street frontage with a minimum of one tree per property. Street trees shall be located between the inside edge of sidewalk and edge of road pavement. Typical spacing for some commonly used street trees are listed in the below chart. [Amd. Ord. 6-12 2/21/12]
(7)
Existing multiple family, duplex, commercial, and industrial development. All existing multi-family units, duplexes, and commercial and industrial uses shall comply with the minimum standards for landscaping as follows: [Amd. Ord. 22-96 5/21/96]
(a)
Provide for perimeter landscaping adjacent to public rights-of-way to screen vehicular parking, open-lot sales, service and storage areas to the extent physically possible and deemed feasible by the Landscape Compliance Review Committee. Elimination of parking spaces required by code will not be permitted to upgrade landscaping, however, the deletion of parking spaces in excess of code requirements will be required if they are in areas that will facilitate the required implementation of the minimum landscape requirements for existing development contained herein. [Amd. Ord. 22-96 5/21/96]
(b)
Provide sod and irrigation within the right-of-way between the property line and the edge of pavement of the adjacent travel lane. The removal of existing asphalt may be required within the area between the property line and the edge of pavement of the adjacent travel lane. [Amd. Ord. 22-96 5/21/96]
(c)
Provide screening for all dumpsters and refuse areas and all ground level air-conditioning units and mechanical equipment. Adequacy of screening shall be determined by the Landscape Compliance Review Committee. [Amd. Ord. 22-96 5/21/96]
(d)
Foundation landscaping shall be provided for building elevations that are visible from adjacent rights-of-way.
(8)
Sight distance. Sight distance for landscaping adjacent to rights-of-way and points of access shall be provided pursuant to Section 4.6.14.
(I)
Minimum maintenance requirements.
(1)
General. The owner or his agent shall be responsible for the maintenance of all landscaping required by ordinance or made a condition for approval for a building permit. Landscaping shall be maintained in a good condition so as to present a healthy, neat, and orderly appearance at least equal to that which was required for the original installation, and shall be kept free from refuse and debris. Maintenance is to include mowing, edging, weeding, shrub pruning, fertilization and inspection and repair of irrigation systems to ensure their proper functioning.
(2)
Yard waste management, composting and use of mulches. [Amd. Ord. 6-12 2/21/12]
(a)
Yard wastes shall not be disposed of or stored by shorelines, in ditches or swales, or near storm drains. [Amd. Ord. 6-12 2/21/12]
(b)
Composting of yard wastes provides many benefits and is strongly encouraged. The resulting materials are excellent soil amendments and conditioners. Other recycled solid wastes products are also available and should be used when appropriate. [Amd. Ord. 6-12 2/21/12]
(c)
Grass clippings are a natural benefit to lawns, replenishing nutrients drawn up from the soil and as an organic mulch that helps to retain moisture, lessening the need to irrigate. Grass clippings should be left on your lawn. All discharged clippings are to be kept far away from adjacent shorelines. [Amd. Ord. 6-12 2/21/12]
(d)
Mulches applied and maintained at appropriate depths in planting beds assist soils in retaining moisture, reducing weed growth, and preventing erosion. Mulch, applied at a layer of two inches thick, shall be specified on landscape plans. Mulches shall be kept six inches away from trunk. Mulch from invasive trees such as Melaleuca and Eucalyptus are highly recommended as a suitable mulching resource. [Amd. Ord. 6-12 2/21/12]
(3)
Pesticide management. [Amd. Ord. 6-12 2/21/12] (Ord. No. 28-24, § 2, 11-4-24)
(a)
All landscape applications of pesticides, including Weed and Feed products, should be made in accordance with State and Federal Law and with the most current version of the Florida-friendly Best Management Practices for Protection of Water Resources by the Green Industries. [Amd. Ord. 6-12 2/21/12]
(b)
Property owners and landscape management companies performing pesticide control within the City are strongly encouraged to use Integrated Pest Control (IPC). Biological control is a natural and effective means of eradicating unwanted pests within a landscape. It has relatively little impact on the environment and prevents the unnecessary use of chemicals. [Amd. Ord. 6-12 2/21/12]
(c)
When using pesticides, all label instructions are state and federal law and must be adhered to. [Amd. Ord. 6-12 2/21/12]
(4)
Pruning of trees. Maintenance pruning of trees is to allow for uniform healthy growth. Trees shall be allowed to attain their normal size, and at a minimum attain a 20-foot spread of canopy, prior to any pruning except in conjunction with the removal of diseased limbs, or to remove limbs or foliage that present a hazard to power lines or structures. Lower branches and suckers must be selectively removed to provide a minimum of six feet of clear trunk. Severely cutting back lateral branches and canopy, or "hatracking" is expressly prohibited. Trees may be periodically thinned in order to reduce the leaf mass in preparation for tropical storms. All pruning shall be accomplished in accordance with the National Arborist's Standards. A tree's habit of growth must be considered before planting to prevent conflicts with view or signage and such a conflict shall not of itself necessarily permit the pruning or removal of a tree. (Ord. No. 28-24, § 2, 11-4-24)
(J)
Fertilizer Management. (Ord. No. 28-24, § 3, 11-4-24)
(1)
Purpose and intent. The Florida Department of Environmental Protection has determined that certain water bodies within Palm Beach County are impaired by excessive nutrient levels associated with improper Fertilizer use. This section adopts Best Management Practices for Fertilizer use from the most recent edition of the "Florida-Friendly Best Management Practices for Protection of Water Resources by the Green Industries" in compliance with Section 403.067, Florida Statutes. (Ord. No. 28-24, § 3, 11-4-24)
(2)
Applicability. These regulations shall be applicable to and shall regulate any and all Applicators of Fertilizer and areas of Application of Fertilizer to Urban Landscapes within the City of Delray Beach, unless such Application is specifically exempted by Subsection (9). (Ord. No. 28-24, § 3, 11-4-24)
(3)
Definitions. The following definitions apply to Section 4.6.16(J): (Ord. No. 28-24, § 3, 11-4-24)
Application, Apply, or Applying. The actual physical deposit of Fertilizer to Turf or Landscape Plants. (Ord. No. 28-24, § 3, 11-4-24)
Applicator. Any person who Applies Fertilizer on Turf and/or Landscape Plants in the City of Delray Beach. (Ord. No. 28-24, § 3, 11-4-24)
Approved Test. A soil test from the University of Florida or other commercial laboratory licensed to perform soil testing. (Ord. No. 28-24, § 3, 11-4-24)
Best Management Practices (BMPs). Turf and landscape practices or combination of practices based on research, field-testing, and expert review, determined to be the most effective and practical site-specific means, including economic and technological considerations, for improving water quality, conserving water supplies, and protecting natural resources. (Ord. No. 28-24, § 3, 11-4-24)
Commercial Fertilizer Applicator. Except as provided in Section 482.1562(9), Florida Statutes, any person who Applies Fertilizer for money, goods, services, or other valuable consideration. (Ord. No. 28-24, § 3, 11-4-24)
Fertilizer. Any substance or mixture of substances, except pesticide/fertilizer mixtures such as "weed and feed" products, that contains one or more recognized plant nutrients and promotes plant growth, or controls soil acidity or alkalinity, or provides other soil enrichment. or provides other corrective measures to the soil. (Ord. No. 28-24, § 3, 11-4-24)
Fertilizing or Fertilization. The act of Applying Fertilizer to Turf, specialized turf, or Landscape Plants. (Ord. No. 28-24, § 3, 11-4-24)
Institutional Applicator. Any person, other than a private, non-commercial or a commercial Applicator (unless such definitions also apply under the circumstances), that Applies Fertilizer for the purpose of maintaining Turf and/or Landscape Plants. Institutional Applicators shall include, but shall not be limited to, owners, managers, or employees of public lands, schools, parks, religious institutions, utilities, industrial or business sites, and any residential properties maintained in condominium and/or common ownership. (Ord. No. 28-24, § 3, 11-4-24)
Landscape Plant. Any native or non-native tree, shrub, or groundcover (excluding Turf). (Ord. No. 28-24, § 3, 11-4-24)
Low Maintenance Zone. A minimum ten-foot wide area adjacent to water courses that is planted and managed in order to minimize the need for Fertilization, watering, mowing, etc. (Ord. No. 28-24, § 3, 11-4-24)
Pasture. Land managed for livestock grazing. (Ord. No. 28-24, § 3, 11-4-24)
Prohibited Application Period. The time period during which a flood watch or warning, a tropical storm watch or warning, or a hurricane watch or warning is in effect for any portion of the City of Delray Beach, issued by the National Weather Service, or if heavy rain (two inches or more within a 24-hour period) is likely. (Ord. No. 28-24, § 3, 11-4-24)
Saturated Soil. Soil in which the voids are filled with water. Saturation does not require flow. Soils shall be considered saturated if standing water is present or the pressure of a person standing on the soil causes the release of free water. (Ord. No. 28-24, § 3, 11-4-24)
Turf or Lawn. An area of grass-covered soil held together by the roots of the grass. (Ord. No. 28-24, § 3, 11-4-24)
Urban Landscape. Pervious areas on residential, commercial, industrial, institutional, highway rights-of-way, or other nonagricultural lands that are planted with Turf or Landscape Plants. Agriculture has the same meaning as provided in Section 570.02, Florida Statutes. (Ord. No. 28-24, § 3, 11-4-24)
(4)
Timing of Fertilizer applications. (Ord. No. 28-24, § 3, 11-4-24)
(a)
Fertilizer containing nitrogen and/or phosphorus shall not be Applied before seeding or sodding a site and shall not be Applied for the first 30 days after seeding or sodding, except when hydro-seeding for temporary or permanent erosion control in an emergency situation (wildfire, etc.), or in accordance with the stormwater pollution prevent plan for that site. (Ord. No. 28-24, § 3, 11-4-24)
(b)
No Applicator shall Apply Fertilizers containing nitrogen and/or phosphorus to Turf and/or Landscape Plants during a Prohibited Application Period or to Saturated Soils. (Ord. No. 28-24, § 3, 11-4-24)
(5)
Fertilizer free zones. Fertilizer shall not be Applied within ten feet, or three feet if a deflector shield or drop spreader is used, of any pond, stream, water body, lake, canal, or wetland as defined by the Florida Department of Environmental Protection, Chapter 62-340, Florida Administrative Code, or from the top of a seawall or lake bulkhead. Newly planted Turf or Landscape Plants may be Fertilized in this zone only for a 60-day period beginning 30 days after planting, if needed, to allow the vegetation to become well established. Caution shall be used to prevent direct deposition of Fertilizer into the water. (Ord. No. 28-24, § 3, 11-4-24)
(6)
Low Maintenance Zones. A voluntary ten-foot Low Maintenance Zone is strongly recommended, but not mandated, from any pond, stream, water course, lake, wetland or from the top of a seawall. A swale/berm system is recommended for installation at the landward edge of the Low Maintenance Zone to capture and filter runoff. If more stringent City of Delray Beach Code regulations apply, this Provision does not relieve the requirement to adhere to the more stringent regulations. No mowed or cut vegetative material may be deposited or left remaining in this Zone or deposited in the water. Care should be taken to prevent the over-spray of aquatic weed products in this Zone. (Ord. No. 28-24, § 3, 11-4-24)
(7)
Fertilizer content and application rates. (Ord. No. 28-24, § 3, 11-4-24)
(a)
Fertilizers Applied to Turf shall be Applied in accordance with requirements and directions provided by Rule 5E-1.003(2), Florida Administrative Code. "Labeling Requirements for Urban Turf Fertilizers". Under Rule 5E-1.003(2), Florida Administrative Code, required Application rate and frequency maximums, which vary by plant and Turf types, are found on the labeled Fertilizer bag or container. (Ord. No. 28-24, § 3, 11-4-24)
(b)
Nitrogen or phosphorus Fertilizer shall not be Applied to Turf or Landscape Plants except as provided in Subsection (7)(a) above for Turf, or in the University of Florida Institute of Food and Agricultural Sciences (UF/IFAS) recommendations for Landscape Plants, vegetable gardens, and fruit trees and shrubs, unless a soil or tissue deficiency has been verified by an Approved Test. (Ord. No. 28-24, § 3, 11-4-24)
(c)
Fertilizers used at golf courses shall be Applied in accordance with the recommendations in "Best Management Practices for the Enhancement of Environmental Quality on Florida Golf Courses", published by the Florida Department of Environmental Protection, dated January 2007, as may be amended. Fertilizers used at parks or athletic fields shall be Applied in accordance with Rule 5E-1.003(2), Florida Administrative Code. (Ord. No. 28-24, § 3, 11-4-24)
(8)
Fertilizer application practices. (Ord. No. 28-24, § 3, 11-4-24)
(a)
Spreader deflector shields shall be used when Fertilizing via rotary (broadcast) spreaders. Deflectors must be positioned such that Fertilizer granules are deflected away from all impervious surfaces, fertilizer-free zones and water bodies, including wetlands. Any Fertilizer applied, spilled, or deposited, either intentionally or accidentally, on any impervious surface shall be immediately and completely removed to the greatest extent practicable. (Ord. No. 28-24, § 3, 11-4-24)
(b)
Fertilizer released on an impervious surface must be immediately contained and either legally applied to Turf or any other legal site, or returned to the original or other appropriate container. (Ord. No. 28-24, § 3, 11-4-24)
(c)
In no case shall Fertilizer be washed, swept, or blown off impervious surfaces into storm water drains, ditches, conveyances, or water bodies. (Ord. No. 28-24, § 3, 11-4-24)
(d)
Property owners and managers are encouraged to use an integrated pest management strategy as currently recommended by the University of Florida Cooperative Extension Service Publications and to utilize the plant selection and landscape design standards of the UF/IFAS Florida-Friendly Landscape Program. (Ord. No. 28-24, § 3, 11-4-24)
(9)
Management of grass clippings and vegetative matter. In no case shall grass clippings, vegetative material, and/or vegetative debris intentionally be washed, swept, blown, or otherwise deposited onto or into stormwater drains, drainage ditches or conveyances, water bodies, wetlands, sidewalks or roadways. Any material that is accidentally deposited shall be immediately removed to the maximum extent practicable and disposed of in accordance with applicable codes and regulations. (Ord. No. 28-24, § 3, 11-4-24)
(10)
Exemptions. The requirements in Section 4.6.16(J) shall not apply to: (Ord. No. 28-24, § 3, 11-4-24)
(a)
Bona fide farm operations as defined in the Florida Right to Farm Act, Section 823.14 Florida Statutes; (Ord. No. 28-24, § 3, 11-4-24)
(b)
Other properties not subject to or covered under the Florida Right to Farm Act that have Pastures used for grazing livestock; or (Ord. No. 28-24, § 3, 11-4-24)
(c)
Any lands used for bona fide scientific research, including, but not limited to, research on the effects of Fertilizer use on urban stormwater, water quality, agronomics, or horticulture. (Ord. No. 28-24, § 3, 11-4-24)
(11)
Training. (Ord. No. 28-24, § 3, 11-4-24)
(a)
All commercial and Institutional Applicators of Fertilizer within the City of Delray Beach shall abide by and successfully complete the six-hour training program as described in the "Florida-Friendly Best Management Practices for Protection of Water Resources by the Green Industries" offered by the Florida Department of Environmental Protection through the University of Florida/Palm Beach County Cooperative Extension Service Florida-Friendly Landscapes Program or an equivalent program acceptable to the City. (Ord. No. 28-24, § 3, 11-4-24)
(b)
Non-commercial and non-Institutional Applicators not otherwise required to be certified, such as private citizens on their own residential property, are encouraged to follow the recommendations of the UF/IFAS "Florida-Friendly Landscape Program" and label instructions when Applying Fertilizers. (Ord. No. 28-24, § 3, 11-4-24)
(12)
Licensing of Commercial Applicators. (Ord. No. 28-24, § 3, 11-4-24)
(a)
All businesses Applying Fertilizer to Turf or Landscape Plants (including, but not limited to, residential Lawns, golf courses, commercial/industrial properties, and multi-family and condominium properties) must ensure that the business owner or designee holds the appropriate "Florida-Friendly Best Management Practices for Protection of Water Resources by the Green Industries" training certificate prior to the business owner obtaining a local business tax certificate. Owners for any category of occupation which may Apply any Fertilizer to Turf and/or Landscape Plants shall provide proof of completion of the Program to the City of Delray Beach business tax office. It is the responsibility of the business owner to maintain the "Florida-Friendly Best Management Practices for Protection of Water Resources by the Green Industries" certificate to receive their business tax receipt annually. (Ord. No. 28-24, § 3, 11-4-24)
(b)
After December 31, 2024, all Commercial Applicators of Fertilizer within the City shall have and carry in their possession at all times when Applying Fertilizer, evidence of certification by the Florida Department of Agriculture and Consumer Services as a Commercial Fertilizer Applicator per Rule 5E-14.117(11), Florida Administrative Code. (Ord. No. 28-24, § 3, 11-4-24)
(c)
All businesses Applying Fertilizer to Turf and/or Landscape Plants (including, but not limited to, residential Lawns, golf courses, commercial/industrial properties, and multi-family and condominium properties) must ensure that at least one employee has an appropriate "Florida-Friendly Best Management Practices for Protection of Water Resources by the Green Industries" training certificate prior to the business owner obtaining a business tax receipt. (Ord. No. 28-24, § 3, 11-4-24)
(13)
Enforcement. The requirements of this section shall be enforced by the City of Delray Beach Code Enforcement Board or Special Magistrate pursuant to the authority granted by Section 162.01, Florida Statutes, as may be amended, and the City of Delray Beach Code of Ordinances. (Ord. No. 28-24, § 3, 11-4-24)
(14)
Penalties. Violations of any of the provisions of this Section shall be punishable as set forth in Section 10.99 of this Code. (Ord. No. 28-24, § 3, 11-4-24)
[Amd. Ord. 2-01 1/16/01]
(A)
Purpose. The purpose of this Section is to provide standards and procedures, and to prescribe techniques and methods for the control of site erosion resulting from land-disturbing activities. [Amd. Ord. 2-01 1/16/01]
(B)
Applicability. These regulations apply to any project which involves the disturbance of land in connection with land development, such land-disturbing activities shall include, but not be limited to land clearing, grading, filling, and excavation, construction of buildings, utilities, paving and drainage facilities, demolition, and any other land-disturbing process other than for agricultural purposes. [Amd. Ord. 2-01 1/16/01]
(C)
Erosion control standards. The following site erosion control standards and procedures shall apply to all land-disturbing activities: [Amd. Ord. 2-01 1/16/01]
(1)
All site erosion and sediment control methods to be employed during construction shall be noted on the plans and included in a Pollution Prevention Plan submitted to the City for a building permit, right-of-way work permit, subdivision improvement, project involving clearing of property of shrub vegetation, and any other land-disturbing activity which requires a permit or approval by the city. A separate permit shall not be required for site erosion and sediment control, but it shall be a condition of approval of any permit received for building and construction. [Amd. Ord. 2-01 1/16/01]
(a)
Activities approved by the building permit shall be conducted in a manner which does not cause violations of state and federal water quality standards. The permittee shall implement Best Management Practices for erosion and pollution control to prevent violation of state water quality standards. Temporary erosion control shall be implemented prior to and during construction, and permanent control measures shall be completed within seven days of any construction activity. Turbidity barriers shall be installed and maintained at all locations where the possibility of transferring suspended solids into the receiving waterbody exists due to the permitted work. Turbidity barriers shall remain in place at all locations until construction is completed and soils are stabilized and vegetation has been established. Silt screens, hay bales, or other such sediment control measures shall be utilized during construction. The selected sediment control measures shall be installed landward of the upland buffer zones around all protected wetlands. All areas shall be stabilized and vegetated immediately after construction to prevent erosion into the wetlands and upper buffer zones. All practices shall be in accordance with the guidelines and specifications in the Florida Stormwater, Erosion and Sedimentation Control Inspectors Manual, or latest edition, on file with the City of Delray Beach's Chief Building Official. [Amd. Ord. 2-01 1/16/01]
(2)
The developer/owner shall be required to comply with the State Ambient Air Quality Standards, in accordance with Florida Administrative Code Chapter 17-2, Unconfined Emissions, which specifies standards for air quality.
(D)
Erosion and sediment control methods. [Amd. Ord. 2-01 1/16/01]
(1)
In connection with any land-disturbing activity, provision shall be made to control site erosion. Site erosion is considered to occur when material is carried beyond the site on which such land-disturbing activity is taking place, and is thus deemed to be a public nuisance with respect to the surrounding private properties and public areas. [Amd. Ord. 2-01 1/16/01]
(2)
During such land-disturbing activity, the developer/owner shall be required to control the site erosion by any means necessary to contain the soil, dust, and sediments within the project site. These methods may include, but are not limited to, the following: leaving a buffer strip of land around the perimeter of the site if the existing vegetation is sufficient to stop the site erosion, the construction of a silt fence around the entire site, covering loose fill material with fabric or other covering, and wetting down the loose material with moisture emulsions specific for that purpose. [Amd. Ord. 2-01 1/16/01]
(3)
Prior to and during construction of all sites, the permittee and/or responsible party shall implement and maintain all erosion and sediment control measures (Best Management Practices) included in the Pollution Prevention Plan, required to retain sediment on-site and to prevent violations of state and federal water quality standards. All practices shall be in accordance with the guidelines and specifications in the Florida Stormwater, Erosion and Sedimentation Control Inspectors manual, or latest edition, on file with the City of Delray Beach's Chief Building Official. [Amd. Ord. 2-01 1/16/01]
(4)
After the conclusion of the land-disturbing activity, no disturbed area may be left denuded, and every disturbed area must be covered by mulches such as straw, hay, filter fabric, seed and mulch, sod, or other approved material to the extent necessary to cover otherwise denuded areas, unless the City Engineer determines that the circumstances do not require such covering. Within 60 days after final grade is established on any portion of a project site, that portion of the site shall be provided with established permanent soil stabilization measures according to the original construction plan, whether by impervious surface or landscaping. [Amd. Ord. 2-01 1/16/01]
(5)
The permittee and/or responsible party shall correct any erosion that causes adverse impacts to water resources. Sediment accumulation in the stormwater system from construction activities must be removed at the cost of the permittee to prevent a loss of storage volume. [Amd. Ord. 2-01 1/16/01]
(6)
Construction sites that discharge directly or indirectly to a Municipal Separate Storm Sewer System (MS4) must have a Pollution Prevention Plan on-site at all times. [Amd. Ord. 2-01 1/16/01]
(A)
Minimum requirements.
(1)
The requirements contained in this Section are minimum aesthetic standards for all site development, buildings, structures, or alterations except for single family development.
(2)
It is required that all site development, structures, buildings, or alterations to same, show proper design concepts, express honest design construction, and be appropriate to surroundings.
(B)
Building and structure requirements.
(1)
Buildings or structures which are a part of a present or future group or complex shall have a unity of character and design. The relationship of forms and the use, texture, and color of materials shall be such as to create a harmonious whole. When the area involved forms an integral part of, is immediately adjacent to, or otherwise clearly affects the future of any established section of the City, the design, scale and location on the site shall enhance rather than detract from the character, value, and attractiveness of the surroundings.
(2)
Buildings or structures located along strips of land or on single sites, and not a part of a unified multi-building complex, shall strive to achieve visual harmony with the surroundings. If they are built in undeveloped areas, the three primary requirements shall be met: express honest design construction, show proper design concepts, and be appropriate to the City.
(3)
All facades visible to public or adjacent property shall be designed to create a harmonious whole. Materials shall express their function clearly and not appear as a material foreign to the rest of the building.
(4)
To be harmonious, it is not to be inferred that buildings must look alike or be of the same style. Harmony can be achieved through the proper consideration of scale, proportion, site planning, landscaping, materials, and color.
(5)
Look-alike buildings are not allowed unless, in the opinion of the Site Plan Review and Appearance Board or the Historic Preservation Board, there is sufficient separation to preserve the aesthetic character of the present of evolving neighborhood. This is not to be construed to prohibit duplication of floor plans and exterior treatment in a planned development where, in the opinion of the Board, the aesthetics of the development depend upon, or are enhanced by the look-alike buildings and their relationship to each other. [Amd. Ord. 21-04 5/4/04]
(6)
Buildings, which are of symbolic design for reasons of advertising, unless otherwise compatible with the criteria herein, will not be approved by this Board. Symbols attached to buildings will not be allowed unless they are secondary in appearance to the building and landscape and are an aesthetic asset to the building project and neighborhood.
(7)
Exterior lighting may be used to illuminate a building and its grounds for safety purposes, but in an aesthetic manner. Lighting is not to be used as a form of advertising in a manner that is not compatible to the neighborhood or in a manner that draws considerably more attention to the building or grounds at night than in the day. Lighting following the form of the building or part of the building will not be allowed if, in the opinion of the Board, the overall effect will be garish or detrimental to the environment. All fixtures used in exterior lighting are to be selected for functional aesthetic value.
(8)
Building surfaces, walls, and roofs that are considered garish by the Board will be denied approval.
(9)
"Take-out" or "pick-up" windows or doors shall not be located on a building facade that faces a public right-of-way, unless they are designed in a manner as to be an aesthetic asset to the building and neighborhood. [Amd. Ord. 21-04 5/4/04]
(10)
All exterior forms, attached or not to buildings, shall be in conformity to, and secondary to, the building. They shall be an asset to the aesthetics of the site and to the neighborhood.
(11)
All telephones, vending machines, or any facilities dispensing merchandise, or a service on private property, shall be confined to a space built into the building or buildings or enclosed in a separate structure compatible with the main building.
(12)
Gasoline stations.
(a)
Symbolic color of the exterior facades or roofs may not be used unless they are harmonious with the atmosphere of the neighborhood and the city.
(b)
Exterior display of goods for sale or displays designating a service will not be allowed, except that a display of goods and tools of a service may be displayed on the pump island, provided the island is not considered by the Site Plan Review and Appearance Board or Historic Preservation Board to be enlarged to take advantage of this provision, and provided the goods and tools be such that they can be used or installed at the island. For example: An oil rack is acceptable, but a tire display is not. [Amd. Ord. 21-04 5/4/04]
(13)
Outbuildings and shopping centers.
(a)
Rule. Outbuildings within a shopping center shall be compatible in terms of color, materials, and architectural style.
(b)
Procedure. The Site Plan Review and Appearance Board shall make a finding of such compatibility prior to approval of outbuilding elevations. If the Board determines that there is not compatibility with respect to any of the items, then it shall deny the elevations. However, if the Board feels, despite the incompatibility, the elevations should be approved they shall forward the elevations to the City Commission with a recommendation of approval and the City Commission shall take final action.
(14)
Architectural features and building structures constructed or placed above the roof, such as stair towers, restroom facilities, and elevator overruns, shall be incorporated into the overall building design and shall be consistent with the architectural style. (Ord. No. 02-21, § 4, 3-2-21)
(15)
Flat roofs shall be screened from the lateral view of adjacent properties by a parapet. New or replacement rooftop appurtenances, including mechanical equipment, shall be screened by a parapet, enclosure, or other method equal in height to the appurtenance. The screening must be integrated and compatible with the building architecture. (Ord. No. 02-21, § 4, 3-2-21)
(C)
Exterior space. The scale of exterior space is to be relative to its neighborhood, adjacent properties, buildings, access (roads and pedestrian routes), and its activity. Building facades enclosing a space must be harmonious. Where, because of their use or age, like facades are not possible, consideration should be given to unifying the walls of the space by the application of landscaping, or man-made objects of like design, at modular spacing. The floor of a space is of primary importance. Its materials, texture, and color, contour, and shadow on it are to be considered, not only in relation to the space, but to its setting. Careful consideration shall be given to the preservation of natural vistas and to the future development of vistas which open into undeveloped areas.
(D)
Parking lots and vehicular use areas.
(1)
Parking lots and other vehicular use areas are to be designed as an aesthetic asset to a neighborhood and to the building, group of buildings, or facility they serve. A parking lot is to be considered an outside, transitional space which is located between the access (such as roads) and the building, group of buildings, or other outside spaces, which it serves. The parking lot, because it is viewed from above as well as at eye level, should be designed accordingly.
(2)
Parking lots, vehicular use areas, and their parked vehicles are to be effectively screened from the public view and from adjacent property in a manner that is attractive and compatible with safety, the neighborhood, and facilities served.
(3)
The atmosphere within the parking lot and vehicular use area is to be park-like, rather than the harsh hardstand of paving. Trees are of primary importance in the landscape. They are not to be minimized in either height or quantity. The tree imparts, especially in a relatively flat area, a sense of three-dimensional space. It casts shadows that reduce the monotony of the expanse of paving and creates a refuge from the tropical sun. Signs designating entrances, exits, and regulations are to be of a tasteful design and subject to review by the Site Plan Review and Appearance Board or the Historic Preservation Board. The pavement is to be more than wall-to-wall asphalt. [Amd. Ord. 21-04 5/4/04]
(4)
It is recommended that pavement be varied in texture or color designating lanes for automobile traffic, pedestrian walks, and parking spaces. Bright-colored pavement is to be used only with restraint. In order to create a pleasant atmosphere, it is recommended that consideration be given to sculpture, fountains, gardens, pools, and benches. Design emphasis is to be given to the entrances and exits to the lot. Trash, refuse, and unaesthetic storage and mechanical equipment should be screened from the parking lot.
(5)
Lighting is to be designed not only from the standpoint of safety and resistance to vandalism, but for visual effect. It should avoid any annoyance to the neighbors from brightness or glare. It should not impart a prison-like atmosphere. Low lights of a modest scale can be used along with feature lighting emphasizing plants, trees, barriers, entrances, and exits. The fixtures are to be selected not only for their functional value, but for their aesthetic qualities. They are to be considered furniture of the parking lot visible both day and night.
(E)
Criteria for board action. The following criteria shall be considered, by the Site Plan Review and Appearance Board or Historic Preservation Board, in the review of plans for building permits. [Amd. Ord. 21-04 5/4/04]
If the following criteria are not met, the application shall be disapproved.
(1)
The plan or the proposed structure is in conformity with good taste, good design, and in general, contributes to the image of the City as a place of beauty, spaciousness, harmony, taste, fitness, broad vistas, and high quality.
(2)
The proposed structure, or project, is in its exterior design and appearance of quality such as not to cause the nature of the local environment or evolving environment to materially depreciate in appearance and value.
(3)
The proposed structure, or project, is in harmony with the proposed developments in the general area, with the Comprehensive Plan, and with the supplemental criteria which may be set forth for the Board from time to time.
(A)
Purpose. The purpose of this section is to promote the public health, safety and general welfare and to encourage the preservation, protection, enforcement, and maintenance of trees. Through maintaining and enhancing their canopy, trees contribute to making cities sustainable by: providing food and securing nutrition, increasing natural biodiversity, housing wildlife, mitigating climate change, cooling the air, filtering pollutants, improving physical and mental health, reducing storm water runoff, reducing carbon emissions and increasing property values. (Ord. No. 19-17, § 1, 8-2-17)
(B)
Applicability. This section shall apply to all improved and unimproved properties within the City, including single family homes and duplexes. (Ord. No. 19-17, § 1, 8-2-17)
(C)
Compliance, enforcement and relief. (Ord. No. 19-17, § 1, 8-2-17)
(1)
Compliance. (Ord. No. 19-17, § 1, 8-2-17)
(a)
Prior to the issuance of a landscape permit or a building permit for a structure, a paving permit, or site permit for infrastructure installation, compliance with the requirements of this section shall be assured through the review and approval of a landscape plan submitted pursuant to Section 2.4.3(C) and 4.6.16. (Ord. No. 19-17, § 1, 8-2-17)
(b)
Prior to any tree removal or land clearing operation, a Vegetation Removal Permit per Sec. 4.6.19(E), must be submitted and approved. (Ord. No. 19-17, § 1, 8-2-17)
(2)
Enforcement. Violations of this section that are deemed to be public nuisances under Chapter 100 of the Code of Ordinances may be enforced in accordance with all remedies and alternative remedies provided under Chapter 100. Violations may also be enforced by the Code Enforcement Board, County Court Citation, a Notice to Appear, and/or any other means available under state or federal law, inclusive. (Ord. No. 19-17, § 1, 8-2-17)
(D)
Preservation and promotion of existing trees and palms. To the fullest extent practicable, all development proposals (land development application or building permits) must provide for the protection of existing trees having a trunk four inch or greater diameter measured at four and one-half feet above grade (Diameter at Breast Height "DBH") and palms having a Clear Trunk (CT) of eight feet or more. (See Appendix "A" Definitions) Concurrent with a land development application, a Tree Disposition Plan shall be required, displaying the location, diameter, species, condition, and disposition of all trees greater than four inches DBH and palms greater than eight feet CT and shall illustrate all new development in relation to the existing condition of the site. The Tree Disposition Plan shall identify trees and palms to be preserved, relocated, and removed. Tree and palm protection and relocation measures shall be specified on the plan, as well as mitigation calculations (i.e. In Lieu Fees). The Tree Disposition Plan, including the relocation measures and mitigation (including transport methods, watering details, etc.), shall be subject to review by the approving body, as a part of the development proposal's landscape plan, and may be approved, denied, or approved with conditions. (Ord. No. 19-17, § 1, 8-2-17; Ord. No. 10-23, § 3, 9-5-23)
(1)
Preservation of native plant communities. All existing native plant communities on sites proposed for development shall be preserved where possible through incorporation into the site design. Existing plant communities that are specified to remain shall be preserved to the greatest extent possible with trees, understory, and ground covers left intact and undisturbed, except for the eradication of prohibited and/or invasive plant species. In addition, stands of trees with or without understory plantings shall also be preserved. (Ord. No. 19-17, § 1, 8-2-17; Ord. No. 10-23, § 3, 9-5-23)
(2)
Preservation of trees. To the fullest extent possible, trees are to be preserved on site and protected from damage during the construction process. The Development Services Director, or designee, shall have the authority to require the preservation of trees on site and condition the approval of the development to incorporate existing trees into the site design. To accommodate the site development scenarios conducive to preserving trees, the City will consider flexible site design options. Proposed flexible site design options will be considered on a case-by-case basis and are subject to review and approval by the Historic Preservation Board (HPB) or Site Plan Review and Appearance Board (SPRAB), as appropriate. Trees designated for preservation that do not survive shall be replaced by a tree of equal DBH size or an equivalent number of trees with the total trunk DBH equal to the DBH size of the perished tree(s). Palms designated for preservation that do not survive shall be replaced by one palm of equal overall height for each perished palm. Replacements shall be the same species or an alternate species approved by the City. (Ord. No. 19-17, § 1, 8-2-17; Ord. No. 10-23, § 3, 9-5-23)
(3)
Relocation of trees and palms. If tree preservation is not feasible, trees and palms must be relocated on site. If tree relocations severely restrict the use of the property, then trees and palms may be relocated off-site to a location approved by the City. To determine feasibility of relocation, a written report from a certified arborist, per Section 4.6.19(E)(2)(C), must be submitted with the land development application, as well as the arborist's assessment of relocation. (Ord. No. 19-17, § 1, 8-2-17)
Trees designated for relocation that do not survive shall be replaced by a tree of equal DBH size or an equivalent number of replacement trees with the total trunk caliper size equal to the total DBH size of the perished tree(s) as required by Section 4.6.16. Palms designated for relocation that do not survive shall be replaced by one palm of equal overall height for each perished palm. (Ord. No. 19-17, § 1, 8-2-17; Ord. No. 10-23, § 3, 9-5-23)
(4)
Tree and palm removal. A tree may be removed only when an applicant has demonstrated that the proposed development will preclude preservation of trees in place and that relocation of trees is not feasible either on or off-site. Tree removal requires the issuance of a Vegetation Removal Permit. All trees removed must be mitigated per Section 4.6.19(E)(5). (Ord. No. 19-17, § 1, 8-2-17)
(E)
Vegetation removal. (Ord. No. 19-17, § 1, 8-2-17; Ord. No. 10-23, § 3, 9-5-23)
(1)
Permit required. It shall be unlawful for any person, without first obtaining a permit, to remove, cause to be removed, or effectively remove through damaging any tree, having a DBH of four inches. (Ord. No. 19-17, § 1, 8-2-17)
(a)
No Vegetation Removal Permit shall be issued for a property until the proposed development plan has received site plan approval, if required. Application for a Vegetation Removal Permit may commence only after the site plan and corresponding landscape plan has been approved and the building permit and mitigation fees have been paid. (Ord. No. 19-17, § 1, 8-2-17)
(b)
Single family homes and duplexes located within a historic overlay district or individually designated as historic properties shall follow the planning and zoning process as provided in the Land Development Regulations. The Vegetation Removal Permit will be reviewed with the entire permit package, per Sections 4.6.16 and 4.6.19(E)(2)(a) through (e). (Ord. No. 19-17, § 1, 8-2-17; Ord. No. 10-23, § 3, 9-5-23)
(c)
For all single family homes and duplexes not located in a historic overlay district or individually designated as historic, the Vegetation Removal Permit will be administratively reviewed by City Staff along with the proposed building and landscape plans, per Sections 4.6.16 and 4.6.19(E)(2)(f). (Ord. No. 19-17, § 1, 8-2-17; Ord. No. 10-23, § 3, 9-5-23)
(2)
Permit application information required. The following information and documentation must be provided with the Vegetation Removal Permit application: (Ord. No. 19-17, § 1, 8-2-17)
(a)
A copy of the approved site/landscape plan showing the location of proposed or existing driveways, parking and structures on the site. (Ord. No. 19-17, § 1, 8-2-17)
(b)
A tree survey for all projects, including single family homes and duplexes within the historic or beach overlay districts. (Ord. No. 19-17, § 1, 8-2-17; Ord. No. 10-23, § 3, 9-5-23)
(c)
For development applications, a condition assessment for all trees performed by a certified arborist that describes the condition percentage rating of the tree, makes note of hazardous trees and identifies trees that are a threat to endanger structures, pavement, and/or utilities. Trees identified for relocation will require a written assessment of transplant feasibility. (Ord. No. 19-17, § 1, 8-2-17; Ord. No. 10-23, § 3, 9-5-23)
(d)
Designation of the disposition of all trees proposed for preservation, relocation, or removal, presented on a Tree Disposition Plan. (Ord. No. 19-17, § 1, 8-2-17; Ord. No. 10-23, § 3, 9-5-23)
(e)
Any proposed grade changes which might adversely affect or endanger any trees on the site with specifications as to how to maintain such endangered trees. (Ord. No. 19-17, § 1, 8-2-17)
(f)
For single family homes and duplexes outside of the historic or beach overlay districts, a sketch plan, indicating the approximate location of all trees four-inch DBH and larger with identification of species, trunk DBH, approximate overall tree height, and the designation of the dispositions of the trees per Section 4.6.19(E)(2)(d) may be substituted for a professional tree survey. An arborist report may be required per Section 4.6.19(E)(5)(e). (Ord. No. 19-17, § 1, 8-2-17; Ord. No. 10-23, § 3, 9-5-23)
(3)
Procedure. Upon acceptance of an application, the Development Services Director, or designee, shall inspect the site, verify the information provided in the application, identify additional information required to complete the application, and approve or deny the application. Trees may be removed if either of the following conditions exist: (Ord. No. 19-17, § 1, 8-2-17; Ord. No. 10-23, § 3, 9-5-23)
(a)
The tree is located in the buildable area or yard area where a structure or improvements are to be placed and it unreasonably restricts the permitted use of the property; and, the tree cannot be relocated on the site or to an off-site location because of its condition, size, type, or age; or (Ord. No. 19-17, § 1, 8-2-17)
(b)
The tree is diseased, injured, in danger of falling, interferes with utility services, creates unsafe vision clearance, or deemed to be hazardous by the Development Services Director or designee. Observable physical damage to building foundations, driveways, and water and sewer lines shall also constitute a reasonable request for the removal of a tree only if root protection devices (such as root barriers) are not a viable option. (Ord. No. 19-17, § 1, 8-2-17; Ord. No. 10-23, § 3, 9-5-23)
(4)
Issuance of permit. (Ord. No. 19-17, § 1, 8-2-17)
(a)
Normal issuance. Upon approval of the application and payment of the application fee, a permit shall be issued, and shall be valid for a period of 180 days. The permit shall require compliance with the conditions of approval, a copy of which shall be provided with the permit. Permit applications that include tree removal must be submitted by a licensed tree trimmer or arborist. Contractors licensed simply as a landscape contractor shall not remove trees. (Ord. No. 19-17, § 1, 8-2-17; Ord. No. 10-23, § 3, 9-5-23)
(b)
Issuance for single family homes and duplexes. On the property of single family homes and duplexes, the owner may submit a tree removal permit application to do the work themself, providing the dwelling is owner occupied and providing that the extent of the work, in the determination of the Development Services Director, or designee, can be done safely by the property owner. However, street trees that are depicted on the landscape plan of record for a subdivision may not be removed unless conditions as described within LDR Section 4.6.9(E)(3) exist. Mitigation requirements shall apply per Section 4.6.19 E(5)(e). (Ord. No. 19-17, § 1, 8-2-17; Ord. No. 10-23, § 3, 9-5-23)
(c)
Emergency issuance. In the event that any tree shall be determined to be hazardous or in a condition so as to endanger the public health or safety, and requires removal without delay, verbal authorization may be given by the Development Services Director, or designee, and the tree may be removed prior to the issuance of a permit as herein required. A permit shall be applied for retroactively within seven days of the verbal authorization and removal. (Ord. No. 19-17, § 1, 8-2-17; Ord. No. 10-23, § 3, 9-5-23)
(d)
Hurricanes. During emergencies caused by hurricanes or other disaster, the City may suspend all or part of the land clearing and tree removal permit requirements for an indefinite period of time. Trees which have been uprooted, blown over and cannot be righted, or whose major branches are split or broken may be removed after a hurricane, for a period of 60 days after the storm event without obtaining a permit from the City. Trees identified on a 'Landscape Plan of Record' will ultimately have to be replaced. Residential uses shall have one year after the storm event for replacements and non-residential uses shall have six months to replace required trees and palms. (Ord. No. 19-17, § 1, 8-2-17)
(5)
Imposition of conditions. The removal permit may require mitigation of adverse impacts as provided in the following: (Ord. No. 19-17, § 1, 8-2-17; Ord. No. 10-23, § 3, 9-5-23)
(a)
Relocation. The tree or palm may be required to be relocated to a suitable location on the site or off site. (Ord. No. 19-17, § 1, 8-2-17; Ord. No. 10-23, § 3, 9-5-23)
(b)
Mitigation. Mitigation is required as follows: (Ord. No. 19-17, § 1, 8-2-17; Ord. No. 10-23, § 3, 9-5-23)
i.
Tree and palm removal shall be mitigated pursuant to Table 4.6.19(E)(5)(b)(i). Removed trees shall not be mitigated with palms; however, removed palms may be mitigated with trees. (Ord. No. 10-23, § 3, 9-5-23)
(Ord. No. 10-23, § 3, 9-5-23)
ii.
Trees or palms designated for preservation or relocation that do not survive shall be replaced in accordance with Table 4.6.19(E)(5)(b)(i). Replacements shall be the same species, or an alternate species approved by the Development Services Director, or designee. (Ord. No. 10-23, § 3, 9-5-23)
iii.
If trees or palms with a condition rating of less than 50 percent cannot be replaced on-site on a tree-for-tree or palm-for-palm basis, removed trees and palms shall be mitigated via an in-lieu fee as required by Section 4.6.19(E)(5)(d). (Ord. No. 10-23, § 3, 9-5-23)
iv.
Trees or palms provided in excess of the required replacement are not subject to the minimum specifications. (Ord. No. 10-23, § 3, 9-5-23)
(c)
Replacement. All replacement trees must be planted within 90 days of the issuance of the permit, or prior to issuance of conditional certificate of occupancy or first certificate of occupancy, except for tree replacements in connection with major storm events as described in Section 4.6.196(E)(4)(d). (Ord. No. 19-17, § 1, 8-2-17; Ord. No. 10-23, § 3, 9-5-23)
(d)
In lieu fee. Where the property cannot accommodate tree or palm replacement through mitigation, an in-lieu fee shall be deposited into the Tree Trust Fund prior to permit approval. The in-lieu fee shall be approved as part of the landscape plan. The in-lieu fee shall be calculated as established by Resolution of the City Commission: (Ord. No. 19-17, § 1, 8-2-17; Ord. No. 10-23, § 3, 9-5-23)
(e)
Exemption. Existing single family homes and duplexes outside of historic or beach overlay districts, are generally exempt from mitigation requirements provided the tree proposed for removal has a DBH of less than four inches, and the property contains the minimum number of code required trees per Section 4.6.16. Exemptions and exceptions are described as follows: (Ord. No. 19-17, § 1, 8-2-17; Ord. No. 10-23, § 3, 9-5-23)
i.
Mitigation is required for the removal of code-required trees with a DBH of four inches or greater, unless the location interferes with a proposed addition to an existing structure or new accessory structure. (Ord. No. 19-17, § 1, 8-2-17; Ord. No. 10-23, § 3, 9-5-23)
ii.
Code-required trees with a DBH four inches or greater can be removed for life safety issues, property destruction, irreversible structural deficiencies within the tree, or in an incurable disease can be documented by a certified arborist's report and no other tree saving options are available as determined by the Development Services Director or designee. Mitigation is not required for trees that present an unacceptable risk. (Ord. No. 19-17, § 1, 8-2-17; Ord. No. 10-23, § 3, 9-5-23)
iii.
If applicable, mitigation of removed trees shall be the smaller of either the quantity of trees to reach the minimum code requirement for the size of the lot or a quantity of trees that equal the caliper measurement of the tree that is proposed for removal. Notwithstanding Sections 4.6.19(E)(6), 4.6.19(E)(4)(c), 4.6.19(E)(4)(d) of the Land Development Regulations, tree removal permits are required prior to removal and penalties may be assessed pursuant to Section 4.6.19(E)(8) where a permit was not obtained prior to removal. (Ord. No. 19-17, § 1, 8-2-17; Ord. No. 10-23, § 3, 9-5-23)
(6)
Exceptions to permit requirements. (Ord. No. 19-17, § 1, 8-2-17)
(a)
Nuisance plant species exception. Nuisance plant species are those plant species classified as Category I by Florida Invasive Species Council (FISC). Removal a nuisance plant species shall be authorized by the Development Service Director or designee and may be removed without a permit fee and without mitigation. When nuisance plant species are indicated on the landscape plan of record, approval shall be conditioned upon their removal. (Ord. No. 19-17, § 1, 8-2-17; Ord. No. 10-23, § 3, 9-5-23)
(b)
Location exceptions. Removal permits and mitigation shall not be required: (Ord. No. 19-17, § 1, 8-2-17; Ord. No. 10-23, § 3, 9-5-23)
i.
On the property of licensed tree nurseries; or (Ord. No. 19-17, § 1, 8-2-17; Ord. No. 10-23, § 3, 9-5-23)
ii.
When work is done by the electric utility company within the city right-of-way or on city property; or (Ord. No. 19-17, § 1, 8-2-17; Ord. No. 10-23, § 3, 9-5-23)
iii.
Within the rights-of-way of the Lake Worth Drainage District, as governed by Interlocal Agreement; or (Ord. No. 19-17, § 1, 8-2-17; Ord. No. 10-23, § 3, 9-5-23)
iv.
On city lands, rights-of-way and easements, the City shall have the right to plant, prune, maintain and remove trees as may be necessary to ensure public safety or preserve and enhance the beauty of public grounds; or (Ord. No. 19-17, § 1, 8-2-17; Ord. No. 10-23, § 3, 9-5-23)
v.
On properties with a single-family detached building actively used for single-family residential purposes if the property owner possesses documentation from an arborist certified by the International Society of Arboriculture (ISA) or a Florida licensed landscape architect that the tree poses an unacceptable risk to persons or property. (Ord. No. 10-23, § 3, 9-5-23)
(7)
Permit fees. (Ord. No. 19-17, § 1, 8-2-17)
(a)
Vegetation Removal Permit Fees: Permit fee amounts are established by Resolution of the City Commission pursuant to Section 2.4.3(K) of the Land Development Regulations. (Ord. No. 19-17, § 1, 8-2-17; Ord. No. 10-23, § 3, 9-5-23)
(b)
Permit Fees Waived: Where a tree or palm has died due to natural causes, including disease, lethal yellowing, freezing, lightning or storms, or is a nuisance plant species, there shall be no permit fee, even though inspection and permitting and replacement requirements may be required. (Ord. No. 19-17, § 1, 8-2-17; Ord. No. 10-23, § 3, 9-5-23)
(8)
Penalties. The penalty for failing to obtain a vegetation removal permit shall result in a triple permit fee for each violation, including each tree or palm removed. Additionally, mitigation is required and must be provided using one of the following: (Ord. No. 19-17, § 1, 8-2-17; Ord. No. 10-23, § 3, 9-5-23)
(a)
DBH Replacement: Each tree removed shall be replaced with one or more trees with the equivalent DBH at the direction of the Development Services Director or designee. Where the property cannot accommodate tree replacement on a DBH basis, an in-lieu fee shall be deposited into the Tree Trust Fund, as set forth in Section 4.6.19(E)(5)(d). (Ord. No. 19-17, § 1, 8-2-17; Ord. No. 10-23, § 3, 9-5-23)
(b)
Palm Replacement: Palms shall be replaced on a one-on-one basis with palms of the same clear trunk measurement, to be approved by the Development Services Director or designee. Where the property cannot accommodate palm replacement on a one-on-one basis, an in-lieu fee shall be deposited into the Tree Trust Fund, as set forth in Section 4.6.19(E)(5)(d). (Ord. No. 10-23, § 3, 9-5-23)
(c)
Canopy Replacement for most trees or palms: If the DBH or clear trunk size of the removed trees(s) cannot be determined from any remnants, aerial photography will be used to calculate mitigation. The number of required replacement trees shall be based upon the size of canopy removed. The type of replacement trees selected by the applicant must be approved by the Development Services Director or designee. Replacement area credits shall equal the canopy removed, per Table 4.6.19)E)(8)(b). Where the property cannot accommodate tree replacement on a canopy replacement basis, an in-lieu fee shall be deposited into the Tree Trust Fund, as set forth in Section 4.6.19(E)(5)(d). (Ord. No. 19-17, § 1, 8-2-17; Ord. No. 10-23, § 3, 9-5-23)
TABLE 4.6.19(E)(8)(b)
DETERMINING REQUIRED NUMBER OF REPLACEMENT TREES
(FOR TREES REMOVED BEFORE OBTAINING AUTHORIZATION BY PERMIT)
Notes:
Type 1: Shade Tree;
Type 2: Understory Tree;
Type 3: Palm.
(Ord. No. 19-17, § 1, 8-2-17; Ord. No. 10-23, § 3, 9-5-23)
(c)
Exceptional Specimen Trees: If the removed tree qualifies as a Exceptional Specimen Tree, in addition to the triple permit fee penalty and mitigation requirements above, an additional penalty, as adopted by Resolution, shall apply. (Ord. No. 19-17, § 1, 8-2-17; Ord. No. 10-23, § 3, 9-5-23)
(F)
Tree Pruning: The purpose of tree pruning is to promote uniform and healthy growth. Pruning of tree limbs on a regularly scheduled basis will improve tree health, control growth, and enhance fruiting, flowering and appearance. Trees should be pruned for the first time, two to three years after planting, and every five years thereafter, to remove diseased limbs, co-dominant leaders, sucker growth, or crossing branches, and to remove limbs or foliage that present a hazard to power lines or structures. (Ord. No. 19-17, § 1, 8-2-17; Ord. No. 10-23, § 3, 9-5-23)
(1)
Tree pruning does not require a permit, but if it is done in violation of these regulations, the property owner shall be cited, and the following remedial requirements shall be imposed: (Ord. No. 19-17, § 1, 8-2-17)
(a)
The property owner will be required to replace the tree as per the landscape plan of record, or with a shade tree a minimum of 12 feet in height, with a six-foot spread of canopy. (Ord. No. 19-17, § 1, 8-2-17)
(b)
In lieu of replacement, the property owner may have the option of contracting with a certified arborist, to provide remedial pruning to the disfigured tree over a period of three years in an effort to repair the structural damage to the tree, if in the opinion of the arborist, this can be accomplished. A report from a certified arborist and a copy of the contract for remedial pruning must be submitted to the City for consideration of this option. (Ord. No. 19-17, § 1, 8-2-17)
(2)
Trees shall be allowed to attain their normal size, and at a minimum attain a 20-foot spread of canopy. Tree trimming practices in the City of Delray Beach must adhere to the following: (Ord. No. 19-17, § 1, 8-2-17; Ord. No. 10-23, § 3, 9-5-23)
(a)
Lower branches and suckers must be selectively removed to provide a minimum of six feet of clear trunk, and as they mature, the clearance shall be increased to seven feet adjacent to sidewalks and in areas where trees may impact traffic and pedestrian visibility. (Ord. No. 19-17, § 1, 8-2-17)
(b)
Severely cutting back branches and canopy, or "hatracking" is expressly forbidden. Topping a large tree causes excessive sprouting of weakly attached new branches, and increases wind resistance by creating denser branching patterns. All cuts must be made at the juncture of a lateral branch. (Ord. No. 19-17, § 1, 8-2-17)
(c)
The practice of "Lion's Tailing" wherein all foliage is removed except at the end of the branch, is expressly forbidden. This excessive lifting creates a condition where trees become top-heavy and can increase the chances of wind damage. (Ord. No. 19-17, § 1, 8-2-17)
(d)
Trees shall be periodically thinned to reduce leaf mass in preparation of tropical storms. No more than 30 percent of a trees interior canopy, however, shall be removed through thinning. Foliage within a tree's canopy can help protect structures from flying debris during high winds. (Ord. No. 19-17, § 1, 8-2-17; Ord. No. 10-23, § 3, 9-5-23)
(e)
All pruning shall be accomplished in accordance with the 'National Arborist's Association Standards' or 'The American National Standards Institute A 300 (ANSI A300). A tree's habit of growth must be considered before planting to prevent conflicts with view or signage, and such a conflict shall not, of itself, necessarily permit the removal of the tree. (Ord. No. 19-17, § 1, 8-2-17)
(G)
Palm tree pruning. Many palms are self-pruning, however, for aesthetic reasons palm fronds are often removed. The practice of removing all but a few fronds significantly weakens the trunk of a palm and could result in it snapping in high winds, and, is therefore, prohibited. In particular, Sabal Palms are often 'carrot topped' or 'hurricane cut'. Unless palms are being prepared for relocation, no fronds shall be removed unless they hang below a horizontal position. Fronds that touch a structure should be removed. (Ord. No. 19-17, § 1, 8-2-17)
(H)
Tree pruning/removal/maintenance requirements in the public rights-of-way. The adjacent property owner is responsible to maintain trees and vegetation between the property line/right-of-way line, and the edge of pavement of the adjacent improved right-of-way, or between the property line and the centerline of an unimproved alley. These trees may not be removed without obtaining a permit. Trees and vegetation must be maintained so as not to restrict use or visibility of public improvements, as follows: (Ord. No. 19-17, § 1, 8-2-17)
(1)
Trees and vegetation must not interfere with traffic flow or traffic safety. This includes maintaining visibility at intersections, not obstructing traffic lights, stop signs or other traffic signage. (Ord. No. 19-17, § 1, 8-2-17; Ord. No. 10-23, § 3, 9-5-23)
(2)
Trees and vegetation must not obstruct streetlights, street signs, sidewalks, roads, utilities and other public improvements. (Ord. No. 19-17, § 1, 8-2-17; Ord. No. 10-23, § 3, 9-5-23)
(I)
Existing street trees. New development and building expansion shall take into consideration the existing vegetation and provide designs which will not result in the removal of street trees, or diminish existing streetscapes. (Ord. No. 19-17, § 1, 8-2-17)
(J)
Hurricane preparedness and cleanup. (Ord. No. 19-17, § 1, 8-2-17)
(1)
Shade tree and palm tree pruning. (Ord. No. 19-17, § 1, 8-2-17)
(a)
Dead palm fronds should be removed. All coconut palms must have their coconuts removed prior to hurricane season. (Ord. No. 19-17, § 1, 8-2-17; Ord. No. 10-23, § 3, 9-5-23)
(b)
Shade trees can be pruned to enable trees to hold up better to high winds and storm damage. The following pruning practices can promote the growth of strong branches: (Ord. No. 19-17, § 1, 8-2-17)
i.
Encourage a good branch angle. A narrow angle between branches signals a point of future weakness. To prevent this, remove one of the two branches when the tree is young. (Ord. No. 19-17, § 1, 8-2-17; Ord. No. 10-23, § 3, 9-5-23)
ii.
Encourage strong branch/trunk size relationships. Lateral branches should be no more than ½ to ¾ the diameter of the trunk. Branches heavier than that often cannot be supported by the trunk in high winds. Large lower lateral branches should be removed. (Ord. No. 19-17, § 1, 8-2-17; Ord. No. 10-23, § 3, 9-5-23)
iii.
Maintain a stable center of gravity. If a tree has grown off center, due to loss of limbs or other problems. Selectively removing branches on the leaning side and encouraging branch growth on the opposite side can help re-balance the tree. (Ord. No. 19-17, § 1, 8-2-17; Ord. No. 10-23, § 3, 9-5-23)
iv.
Remove rubbing branches, suckers and water sprouts. Branches rubbing against each other produce wounds and decay, and one of the branches should be removed. Water sprouts and sucker growth can occur at the base of the tree and inside the crown. These branches are weakly attached and should be removed before they increase in size and add stress to the tree's limbs. (Ord. No. 19-17, § 1, 8-2-17; Ord. No. 10-23, § 3, 9-5-23)
v.
Do not cut branches back to stubs or 'hatrack' the tree. When a branch is cut to a stub, new branches will grow from the edges which are weakly attached and will be a weak point in high winds. (Ord. No. 19-17, § 1, 8-2-17; Ord. No. 10-23, § 3, 9-5-23)
(2)
Hazardous tree removal. (Ord. No. 19-17, § 1, 8-2-17)
(a)
All dead trees and palms must be removed prior to hurricane season. Tree removal permits are required. (Ord. No. 19-17, § 1, 8-2-17; Ord. No. 10-23, § 3, 9-5-23)
(b)
Trees or palms that increase the probability of damage to life, property, or utilities during hurricane force winds, due to height, proximity to adjacent structures, physical condition or other peculiar characteristic are declared to be a hazard and a public nuisance. The City shall retain the right to require corrective measures that may include the removal of the tree(s), or pruning to reduce the tree's height or canopy. (Ord. No. 19-17, § 1, 8-2-17; Ord. No. 10-23, § 3, 9-5-23)
(3)
Cleanup. (Ord. No. 19-17, § 1, 8-2-17)
(a)
After a storm, all property owners are required to have trees trimmed to reduce hazards from hanging limbs and branches and to provide reconstructive pruning to restore the tree's canopy, to the extent possible. (Ord. No. 19-17, § 1, 8-2-17)
(b)
Tree stumps and remains of trees that constitute a hazard shall be removed within six months after the storm event. (Ord. No. 19-17, § 1, 8-2-17)
(c)
All properties with a landscape plan of record are required to replace trees and landscaping per the approved plan. Trees shall be replaced per the approved plan on a tree per tree basis and not on a caliper inch basis, thereby not requiring a deposit into the tree trust fund. Residential properties have one year from the storm event, and non-residential properties have six months after the storm event. The Development Services Director or designee may approve additional time for replacement in instances where damage has been severe or tree replacements are unavailable. (Ord. No. 19-17, § 1, 8-2-17; Ord. No. 10-23, § 3, 9-5-23)
(K)
Nuisance species prohibited. Nuisance plant species are those classified as Category I by Florida Invasive Species Council (FISC). (Ord. No. 19-17, § 1, 8-2-17; Ord. No. 10-23, § 3, 9-5-23)
(L)
Prohibited species removed. All Prohibited Species shall be removed from all properties and tree replacements may be required if trees were used to satisfy landscape code requirements at the direction of the Development Services Director or designee. Trees shall be replaced per an approved plan on a tree-per-tree basis and not on a caliper inch basis, thereby not requiring a deposit into the tree trust fund. (Ord. No. 19-17, § 1, 8-2-17; Ord. No. 10-23, § 3, 9-5-23)
(M)
Lethal yellowing. (Ord. No. 19-17, § 1, 8-2-17)
(1)
Lethal yellowing is a systemic disease of palms caused by bacterium transmitted by tropical insects. Palms that are highly susceptible to lethal yellowing should be limited in use. The following palms are susceptible to lethal yellowing disease: (Ord. No. 19-17, § 1, 8-2-17; Ord. No. 10-23, § 3, 9-5-23)
(a)
Christmas Palm — Adonidia merrillii
(b)
Coconut Palm — Cocos nucifera
(c)
Hurricane Palm — Dictyosperma album
(f)
Chinese Fan Palm — Livistonia Chinensis
(g)
Canary Island Date Palm — Phoenix canariensis
(h)
Edibe Date Palm — Phoenix dactylifera
(d)
Senegal Date Palm — Phoenix reclinata
(e)
Wild Date Palm — Phoenix sylvestris
(f)
Arikury Palm — Syagrus schizophylla
(2)
Palm varieties resistant to lethal yellowing shall be planted in favor of those susceptible to lethal yellowing. (Ord. No. 19-17, § 1, 8-2-17; Ord. No. 10-23, § 3, 9-5-23)
(3)
Proposed coconut palms must be resistant to lethal yellowing. Proof of the variety must be provided at the time of permit inspection. (Ord. No. 19-17, § 1, 8-2-17; Ord. No. 10-23, § 3, 9-5-23)
Editor's note— Ord. No. 19-17, § 1, adopted Aug. 2, 2017, amended § 4.6.19 in its entirety to read as herein set out. Former § 4.6.19 pertained to similar subject matter and derived from Amd. 37-06, adopted Sep. 19, 2006; Amd. Ord. 35-08, adopted Sep. 16, 2008; Amd. Ord. 38-09, adopted Aug. 18, 2009; and Amd. Ord. 22-15, adopted Dec. 8, 2015.
(A)
Concept and purpose. Through a Transfer of Development Rights (TDR), the governing body severs the development rights from the underlying fee interest in the regulated property. Permission is given to the owner of the regulated property to either transfer the development rights in that property to another parcel owned by the regulated party or to sell the development rights to owners of land in other designated areas. The TDR approach restricts development in the owner's parcel, but mitigates the overall harm of the land use control by permitting development elsewhere.
(B)
Procedure.
(1)
Creation. To obtain or create a transferable development right (TDR), the City or the owner of property to be regulated shall proceed through the rezoning process for the purpose of rezoning to either the Community Facilities (CF), Open Space (OS), or Conservation (CD) Zone District, as appropriate depending upon the intended use of the regulated property.
(2)
Concurrent rezoning. When it is intended/desired to specifically determine the receiver property and its proposed development intensity at the same time as a Certificate is issued for the regulated property, a concurrent rezoning of both parcels shall be undertaken. However, such rezoning is not necessary if the receiver parcel is properly zoned and the proposed development will be consistent with the Comprehensive Plan and will meet provisions of the Land Development Regulations.
(C)
Determination of value of severed development rights.
(1)
Value base. The value of the severed development rights shall be equal to current development potential of the regulated property in terms of residential dwelling units or floor area of office space less any compensation, including current and ongoing value of the current use, which is provided by the City at the time of rezoning and/or issuance of a Certificate of Development Rights.
(2)
Value determination. To determine the value of severed rights, the petitioner shall provide a site development plan which will comply with the City's development regulations. The intensity of the use accommodated by that site plan shall establish the base value of the property. From this base value, the ongoing value shall be subtracted. The Local Planning Agency shall determine the appropriateness of the intensity and shall certify it to the City Commission. This information shall be a part of the rezoning review and hearing record.
(3)
Equivalency. Office floor area and residential units can be interchanged at the rate of 2,000 square feet of office floor area being equal to one residential dwelling unit. A conversion from office to residential, or from residential to office, may occur at any time up to the application of the Certificate to a receiver property.
(4)
Certificate. Within the rezoning ordinance, the value of the severed development rights shall be stated. In addition to the rezoning ordinance, the owner of the regulated land shall be issued a Certificate of Development Rights. The Certificate shall be a separate document prepared in a form as approved by the City Attorney. It shall not be issued until the regulated property is rezoned and a determination of value is made. The Certificate is transferable (it may be sold). The Certificate shall provide its owner with a development credit to be used pursuant to Subsection (D). Ownership of a Certificate is not equivalent to a demand of project approval; rather, it allows its owner to seek an increase in otherwise allowed intensity of use
(D)
Limitations.
(1)
Limitations on regulated properties. To be eligible for transference of development rights, the resulting use of the "to be regulated" property must be in a manner to advance goals, objectives, and policies of the adopted Comprehensive Plan through: (Ord. No. 23-20, § 36, 9-10-20)
(a)
Preservation of historic structures and sites;
(b)
Obtaining land for public facilities (e.g. fire stations, tennis courts, water storage tanks, etc.);
(c)
Preservation of designated conservation areas;
(d)
Any time when a voluntary action would aide in fulfilling a policy or objective of the adopted Comprehensive Plan. (Ord. No. 23-20, § 36, 9-10-20)
(2)
Limitations on receiver properties. To apply a TDR to a receiver property, it must be able to be developed in accordance with the goals, objectives, and policies of the adopted Comprehensive Plan. (Ord. No. 23-20, § 36, 9-10-20) [13]
Editor's note— Ord. No. 23-20, § 36, adopted September 10, 2020, repealed subsections (2)(a) and (b) which pertained to which areas receiver properties must be located.
SUPPLEMENTAL DISTRICT REGULATIONS
The supplemental district regulations contained in this Article apply to all zone districts in an equal manner unless specific provision to the contrary is made herein. In some instances, modifications of these supplemental regulations are provided for within subsection (G) of the individual zone districts.
(A)
Purpose. The purpose of this Section is to provide for adequate distance between structures to allow for light, air, and open space; and to provide for aesthetically pleasing design relationships among buildings which are constructed within a townhouse, apartment, or condominium residential development.
(B)
Application. The minimum horizontal distance(s) between any two residential buildings (referred to as Building A and Building B) shall vary according to the length and height of such buildings. Such minimum distances shall be the distance required under the following formula:
(Ord. No. 02-19, § 3, 4-16-19)
(Deleted in its entirety from "Supplementary District Regulations" and relocated to "Infrastructure and Public Property", Section 6.1.4 (B). [Amd. Ord. 12-99 3/16/99]
The following special district boundary treatments are to be minimums. If other treatments are required, the requirements which provide for the greatest separation and most buffering shall apply.
(A)
Commercial zoning adjacent to residential zoning or zoning districts with a 35-foot height limitation. [Amd. Ord. 21-04 5/4/04]
(1)
Properties subject to the development standards of the Central Business District (CBD) shall comply with the following: [Amd. Ord. 64-04 11/16/04]; [Amd. Ord. 21-04 5/4/04]
(a)
Where the rear or side of a property directly abuts a zoning district with a height limitation of 35 feet without any division or separation between them of 30 feet or more, such as a street, alley, railroad, waterway, park, or other public open space, the following shall apply: [Amd. Ord. 21-04 5/4/04]
(i)
For buildings or portion of the buildings three stories or less in height, a ten-foot minimum building setback from the property line shall be provided. [Amd. Ord. 03-15 02/24/2015]; [Amd. Ord. 21-04 5/4/04]
(ii)
For buildings above three stories in height, at the top of the third story, minimum side and rear building setbacks of 30 feet shall be provided from the property line for the portion of the building that is over three stories in height. [Amd. Ord. 03-15 02/24/2015]; [Amd. Ord. 21-04 5/4/04]
(iii)
A solid finished masonry wall six feet in height, or a continuous hedge at least four and one-half feet in height at the time of installation, shall be located inside and adjacent to the portion of the boundary line of the CBD zoned property which directly abuts the residentially zoned property. Walkways and other pedestrian or bicycle connections shall be placed through the wall or hedge if they provide links identified on any adopted bicycle and pedestrian master plan or if SPRAB determines they would promote desirable connectivity between properties. [Amd. Ord. 03-15 02/24/2015]; [Amd. Ord. 21-04 5/4/04]
(2)
All other commercially zoned properties shall comply with the following: [Amd. Ord. 21-04 5/4/04]
(a)
Where the rear or side of commercially zoned property directly abuts residentially zoned property without any division or separation between them, such as a street, alley, railroad, waterway, park, or other public open space, the commercially zoned property shall provide a ten-foot building setback from the property line located adjacent to the residentially zoned property. In addition, either a solid finished masonry wall six feet in height, or a continuous hedge at least four and one-half feet in height at the time of installation, shall be located inside and adjacent to the portion of the boundary line of the commercially zoned property which directly abuts the residentially zoned property. If a wall is used, it shall have only those openings as required by other city codes to meet hurricane or severe storm construction standards. No walkways or other pedestrian ways shall be located through the wall or hedge. [Amd. Ord. 21-04 5/4/04]
(b)
Where the rear or side of commercially zoned property does not directly abut residentially zoned property but is separated from it by an alley, the commercially zoned property shall provide a ten-foot building setback from the property line located adjacent to the separator. [Amd. Ord. 21-04 5/4/04]
(B)
Industrial zoning adjacent to residential zoning.
(1)
Where the rear or side of industrially zoned property directly abuts residentially zoned property without any division or separator between them, such as a street, alley, railroad, waterway, park, or other public open space, the industrially zoned property shall provide a 60-foot building setback from the property line located adjacent to the residentially zoned property.
(a)
In addition, either a solid finished masonry wall six feet in height, or a continuous hedge at least four and one-half feet in height at the time of installation, shall be located inside and adjacent to that portion of the boundary line of the industrially zoned property, which directly abuts the residentially zoned property. If a wall is used, it shall have only those openings as required by other city codes to meet hurricane or severe storm construction standards. No walkways or other pedestrian ways shall be located through the wall or hedge.
(b)
Within the rear or side 60-foot building setback, parking and storage shall be allowed, provided such storage does not exceed the height of the barrier.
(2)
Where the rear or side of industrially zoned property does not directly abut residentially zoned property, but is separated from it by a street, alley, railroad, waterway, park, or other public open space, the industrially zoned property shall provide a 50-foot building setback from the property line located adjacent to the separator.
(a)
In addition, either a solid finished masonry wall six feet in height, or a continuous hedge at least four and one-half feet in height at the time of installation, shall be located inside and adjacent to that portion of the boundary line of the industrially zoned property, which directly abuts the residentially zoned property. If a wall is used, it shall have only those openings as required by other city codes to meet hurricane or severe storm construction standards. No walkways or other pedestrian ways shall be located through the wall or hedge.
(b)
A driveway of not more than 24 feet in width may be allowed through the wall or hedge even if the industrially zoned property has access from some other right-of-way or street.
(c)
Within the rear or side 50-foot building setback, parking and storage shall be allowed, provided such storage does not exceed the height of the barrier.
(d)
Where the rear of the industrially zoned property directly abuts the combined rights-of-way of I-95 and the railroad, or the I-95 right-of-way, the wall or hedge will not be necessary; but the landscaping requirements as described in subsection (3) below must be followed.
(3)
Where the rear or side of industrially zoned property does not directly abut a residentially zoned property, but is separated from it by the combined I-95 right-of-way and the railroad right-of-way, or the I-95 right-of-way, the industrially zoned property shall provide a 50-foot building setback from the property line located adjacent to the right-of-way line.
(a)
In addition, the following method of screening shall be provided:
(i)
If the Site Plan Review and Appearance Board determines that the architectural elevation facing I-95 and the Railroad right-of-way is an aesthetic asset to the corridor, the perimeter landscaping shall consist of the following:
Shade trees 30 feet 'on center' and a continuous hedge to be maintained at a minimum height of four feet. Shade trees shall be a minimum of 12 feet in height with a six-foot spread at the time of installation. Hedge materials shall be a minimum of two feet in height at time of installation.
(ii)
If the SPRAB determines that the architectural elevation facing I-95 and the Railroad right-of-way lends itself more to the industrial function of the building, and does not provide an aesthetic asset to the corridor, the perimeter landscaping shall consist of the following:
A 15 foot deep buffer adjacent to I-95 and the Railroad. Within this area, a double staggered row of shade trees shall be planted 20 feet 'on center' within the row. In addition, a hedge must be planted adjacent to the rear property line to be maintained at a six-foot height. Shade trees must be a minimum of 12 feet in height at the time of planting and hedge material must be a minimum of four feet in height. [Amd. Ord. 17-91 2/26/91]
(4)
Where the front of industrially zoned property does not directly abut a residentially zoned property, but is separated from it by a street, alley, railroad, waterway, park, or other public open space, industrially zoned property shall provide a 30-foot building setback from the property line located adjacent to the separator. This front 30-foot building setback shall be landscaped, and no paving shall be permitted in the landscaped setback, except for permissible driveways or walkways leading to a structure.
(C)
POC zoning adjacent to residential zoning. In no event shall a building setback be less than then 25 feet on POC property which abuts residentially zoned property. Further, the total setback area shall be landscaped except for paths for pedestrian and vehicular access to the site.
(D)
MIC zoning adjacent to residential zoning. When a parcel of land zoned MIC abuts a parcel of land zoned residential without any division or separator between them, such as a street, railway, waterway, park, or other public open space, but excluding an alley, the following shall be the minimum setbacks on the abutting property line of the MIC land:
(1)
Front—30 feet, with a minimum landscape buffer of 15 feet.
(2)
Side and Rear—50 feet, with a minimum landscape buffer of 15 feet.
(E)
Subsection deleted in its entirety. [Amd. Ord. 53-94 6/21/94]
(A)
Relationship to travelways. Walls, fences, access gates, hedges, or similar structures shall not be erected in the public right-of-way nor close to the public right-of-way in a manner which will obstruct visibility or otherwise interfere with the proper flow of vehicular traffic, pedestrian safety, or the provision of services. Where deemed to create a sight obstruction, fences, hedges and walls shall be maintained at a height not exceeding three feet. On corner lots and at points of access, additional restrictions requiring provision of adequate sight triangles are provided in Section 4.6.14(A). [Amd. Ord. 7-97 2/18/97] (Ord. No. 11-20, § 2, 12-8-20)
(B)
Dangerous features. No walls, fences, or hedges shall contain any substance such as, but not limited to, barbs, broken glass, nails, or spikes. No fence shall be electrically charged, unless designed and approved pursuant to Subsection (H). Two feet of barbed wire may be placed upon a six foot or higher fence in nonresidential zone districts. [Amd. Ord. 7-97 2/18/97] (Ord. No. 11-16, § 1, 6-7-16)
(C)
Height restrictions. Walls, fences, or hedges located in a required front yard or street side yard shall not exceed six feet in height. Walls, fences, or hedges located in a required interior side or rear yard shall not exceed eight feet in height. Such height is further regulated by subsection (A), above. For the purpose of this section, height is to be measured from the undisturbed (natural) grade of the ground adjacent to the exterior of the fence, wall or hedge. [Amd. Ord. 7-97 2/18/97] (Ord. No. 11-16, § 1, 6-7-16)
(D)
Fence types. Chain link fencing located in the front and street side yards shall be black or green vinyl coated, unless screened by hedging which is to be maintained at the full height of the fence. Fencing that is greater than 75 percent opaque and located in front and street side yards shall also be screened by hedging which is to be maintained at the full height of the fence. [Amd. Ord. 7-97 2/18/97]
(E)
Masonry walls. Masonry walls located in the front and street side yards shall be screened by landscape material that is to be maintained at a minimum height equal to half of the height of the wall. Landscape materials must be of the type that will reach the required height within two years of planting. [Amd. Ord. 7-97 2/18/97]
(F)
Setbacks. Fences and walls which are required to be landscaped shall be set back a minimum of two feet from the property line to provide adequate area for vegetation to mature. Additional restrictions with respect to setbacks are provided in Section 4.6.16(3)(a). [Amd. Ord. 7-97 2/18/97] (Ord. No. 11-16, § 1, 6-7-16)
(G)
Landscaping. All required landscape materials shall be as approved by the City's Senior Landscape Planner and shall comply with applicable provisions of Section 4.4.16. [Amd. Ord. 7-97 2/18/97] (Ord. No. 11-16, § 1, 6-7-16)
(H)
Electrified fences. Electrified fences are permitted in accordance with the regulations listed in this Subsection. (Ord. No. 11-16, § 1, 6-7-16)
(1)
Location. Electrified fences are permitted where outdoor storage is approved as an accessory use within the Industrial (I) zoning district, and Special Activities District (SAD), when outdoor storage is associated with an industrial use or activity and is specified in the approved ordinance creating the SAD. (Ord. No. 11-16, § 1, 6-7-16)
(2)
Electrification. (Ord. No. 11-16, § 1, 6-7-16)
(a)
The energizer for electric fences must be driven by a commercial storage battery not to exceed 12 volts DC. (Ord. No. 11-16, § 1, 6-7-16)
(b)
The electric charge produced by the fence upon contact shall not exceed energizer characteristics set forth in paragraph 22.108 and depicted in Figure 102 of International Electro Technical Commission (IEC) Standard No. 60335-2-76. (Ord. No. 11-16, § 1, 6-7-16)
(3)
Installation requirements. (Ord. No. 11-16, § 1, 6-7-16)
(a)
No electrified fence shall be installed within the front or side-street setback areas as designated for the zoning district where the fence will be located. (Ord. No. 11-16, § 1, 6-7-16)
(b)
Electrified fences shall be completely surrounded by a non-electrified perimeter fence or wall which measures at least six feet in height and complies with the maximum height setbacks in Subsection 4.6.5(C). (Ord. No. 11-16, § 1, 6-7-16)
(c)
The electrified fence shall be set back from the rear or side interior property lines as follows: (Ord. No. 11-16, § 1, 6-7-16)
(i)
At least one foot when surrounded by a perimeter wall or fence; or, (Ord. No. 11-16, § 1, 6-7-16)
(ii)
At least two feet when surrounded by a perimeter wall or fence that is less than 100 percent opaque and adjacent to residentially zoned property or property containing a residential use. (Ord. No. 11-16, § 1, 6-7-16)
(d)
Electrified fences shall measure at least two feet higher than the surrounding nonelectrical fence or wall and in no case measure more than 10 feet in height from grade. (Ord. No. 11-16, § 1, 6-7-16)
(e)
Electrified entry gates may be attached to the inside of the main perimeter entry gate with a minimum separation of three inches between the two gates. (Ord. No. 11-16, § 1, 6-7-16)
(4)
Signage requirements. (Ord. No. 11-16, § 1, 6-7-16)
(a)
Electrified fences shall be clearly identified with warning signs measuring a minimum of one and one half square feet that read: "Warning-Electric Fence" in English, Spanish, and Creole. (Ord. No. 11-16, § 1, 6-7-16)
(b)
Signs shall be placed on both the exterior and interior of the fence. (Ord. No. 11-16, § 1, 6-7-16)
(c)
Signs shall be spaced no greater than 30 feet apart and mounted at least five feet above grade directly onto the fence. (Ord. No. 11-16, § 1, 6-7-16)
(d)
Sign symbols and lettering must contrast with the sign background color. Sign letters shall be a maximum of four inches in height. (Ord. No. 11-16, § 1, 6-7-16)
(5)
Permitting procedure. (Ord. No. 11-16, § 1, 6-7-16)
(a)
Approval of a site plan illustrating the fence location and issuance of a building permit for the fence and electrical components shall be obtained prior to the installation of an electric fence. (Ord. No. 11-16, § 1, 6-7-16)
(b)
Site plan and building permit review shall include approval by the Police Chief and the Fire Marshal or their designee. (Ord. No. 11-16, § 1, 6-7-16)
(c)
Electrified fences shall also be governed and regulated under the City's Alarm System regulations of Chapter 112 of the Code of Ordinances. Subsequent to approval of a site .4.1plan and issuance of a building permit, electrified fences shall be subject to the same registration process and fees as Alarm Systems. (Ord. No. 11-16, § 1, 6-7-16)
(6)
Emergency shut-off. An emergency shut-off switch, for the purpose of de-energizing the electrified fence, shall be accessible to all emergency personnel outside the perimeter of the fence to allow for emergency access. Control and access shall be of a type, location, and marking specified and approved by both the Police Chief and Fire Marshal, or their designees, and included in any site plans submitted to the Planning and Zoning Department. (Ord. No. 11-16, § 1, 6-7-16)
(A)
Intent.
(1)
All commercial and industrial uses shall conduct within a completely enclosed building rather than outside regardless of the zoning district. However, certain aspects of a use may be conducted outside and such aspects are identified in (B) below. [Amd. Ord 27-08 6/17/08]; [Amd. Ord 60-93 10/12/93]
(2)
Certain conditional uses that are allowed within commercial, industrial, and mixed use districts can be characterized as outside uses. Such operations may be conducted outside when it is specifically determined through the conditional use process that the outside aspects of the use are appropriate. Conditions may be applied to mitigate visual and other impacts. [Amd. Ord. 60-93 10/12/93]
(3)
Commercial and industrial uses may be allowed outside on a temporary basis for special events pursuant to Section 2.4.6(F). [Amd. Ord 27-08 6/17/08]
(B)
Allowable outside usage. The following aspects of a use may be conducted outside, pursuant to the restrictions listed in Section 4.6.6(C) below. [Amd. Ord. 60-93 10/12/93]
(1)
Off-street parking.
(2)
Refuse and service areas. [Amd. Ord. 60-93 10/12/93]
(3)
Storage of nursery plants.
(4)
Fruit and vegetable displays.
(5)
Signage.
(6)
Outside dining areas. [Amd. Ord. 60-93 10/12/93]
(7)
Loading and unloading of materials. [Amd. Ord. 60-93 10/12/93]
(8)
Outside storage where specifically permitted within a zoning district. [Amd. Ord. 60-93 10/12/93]
(9)
Activities associated with outside conditional uses, pursuant to (A)(2) above. [Amd. Ord. 60-93 10/12/93]
(10)
Retail displays. [Amd. Ord. 60-93 10/12/93]
(C)
Restrictions on outside usage.
(1)
Dumpsters, recycling containers, and similar service areas must be enclosed on three sides and have vision obscuring gates on the fourth side, unless such areas are not visible from any adjacent public right-of-way. [Amd. Ord. 60-93 10/12/93]
(2)
Outside storage. Materials and equipment stored outside must be screened from view from adjacent public rights-of-way in a manner approved by the Site Plan Review and Appearance Board. Outside storage may not be located within a required setback area. It is not intended that sales or customer service be conducted in an area designated for storage. [Amd. Ord. 60-93 10/12/93]
(3)
Outdoor retail displays. [Amd. Ord. 60-93 10/12/93]
(a)
Outdoor retail displays must be located adjacent to the building containing the main use, on property owned or leased by the business conducting the main use. No display is permitted on public rights-of-way, except when part of an approved special event. [Amd. Ord. 60-93 10/12/93]
(b)
Outdoor display areas may not exceed ten percent of the square footage of the interior of the building which contains the main use. [Amd. Ord. 60-93 10/12/93]
(c)
When an outside display of plants is associated with nurseries and garden shops, one-half of the ground area devoted to such use shall be considered as "floor area" for the purposes of calculating and providing on-site parking. [Amd. Ord. 60-93 10/12/93]
(d)
The Fire Marshal may require the removal or modification of outside displays upon written order, when such displays prevent or impede adequate ingress and egress for emergency purposes. [Amd. Ord. 60-93 10/12/93]
(4)
The City Manager shall have authority to grant administrative relief from LDR Section 4.6.6(C)(3) provided that: [Amd. Ord. 76-94 10/18/94]
(a)
The outside display areas are part of an approved special event. [Amd. Ord. 76-94 10/18/94]
(b)
The administrative relief shall not exceed ten calendar days in duration. [Amd. Ord. 76-94 10/18/94]
[Section Repealed and New Section Enacted by Ord. 78-06 1/02/07; Ord. 14-04 6/22/04]
(A)
Purpose. The purposes of these sign regulations are: to encourage the effective use of signs as a means of communications in the City; to maintain and enhance the aesthetic environment and the City's ability to attract sources of economic development and growth; to improve pedestrian and traffic safety; to minimize the possible adverse effect of signs on nearby public and private property; to foster the integration of signage with architectural and landscape designs; to streamline the approval process by requiring master signage plans; and to enable the fair and consistent enforcement of these sign regulations.
(1)
Communication. Signs should not deny other persons or groups the use of sight lines on public rights-of-way, should not obscure important public messages, and should not overwhelm readers with too many messages. Signs can and should help individuals to identify and understand the jurisdiction and the character of its sub-areas.
(2)
Preservation of community's beauty. The City of Delray Beach which includes a beach resort community as well as major office and industrial parks relies heavily on its natural surroundings and beautification efforts to retain its economic advantage. This concern is reflected by actively regulating the appearance and design of signs.
(3)
Property value protection. Signs should not create a nuisance to the occupancy or use of other properties as a result of their size, height, brightness, or movement. They should be in harmony with buildings, the neighborhood, and other conforming signs in the area.
(B)
Applicability. It shall be unlawful for any persons to post, display, change, or erect a nonexempt sign or a sign structure, that requires a permit, without first having obtained a permit therefor. Signs or sign structures erected without a valid permit shall be deemed in violation and it shall be mandatory to obtain a permit, based on this Section, or else remove the sign or sign structure. Signs erected, under a valid permit, prior to the effective date of this ordinance, which have since become nonconforming shall be allowed to remain in accordance with the time limitation and structure requirements set forth in these LDR's. All signs not expressly allowed by these LDR's are prohibited.
(C)
Procedures.
(1)
Issuance of permits, validity and renewal. Permit applications shall be reviewed by the Chief Building Official or his/her designee within 30 days of submission of the permit application. Upon satisfactory compliance with the minimum submission requirements of the LDRs and a determination that the proposed sign meets all applicable standards set forth in the LDRs, the Chief Building Official, or his/her designee, shall cause a sign permit to be issued to the applicant.
The permit shall be valid for a period of 180 days during which period the sign may be erected; however, the Chief Building Official, or his/her designee, for good cause shown and upon payment of 50 percent of the original application fee, may renew the permit for an additional 90 day increment provided that there have not been enacted, in the 180 day period, standards of which the permit would be in violation. Permits shall be required for all signs not listed within this code as either exempt or prohibited.
(2)
Permits for individual signs. Permits for signs shall be on a form as promulgated by the Chief Building Official.
(a)
Minimum submission requirements. The application form and associated submission materials shall include the following:
1.
The type of sign and/or sign structure as set forth in the LDRs.
2.
The street address of the property upon which the sign and/or sign structure is to be located along with identification of where on said property the sign will be located. If there is no street address another suitable method of identifying the location shall be provided.
3.
The area per sign face and the aggregate area of the sign and/or sign structure.
4.
The name and address of the owner or other person in control or possession of the real property upon which the sign or sign structure is to be located.
5.
Written consent of the owner, or his designated agent, granting permission for the construction, operation, maintenance, or displaying of the sign and/or sign structure.
6.
Two copies of a blueprint, sketch, blue line print, or similar presentation, drawn to scale and dimensioned, showing elevations of the sign as proposed and its relationship to other existing or proposed signs or sign structures in the area. In the case of a free-standing sign, the representation shall include a sketch site plan showing the location of the sign.
7.
Appropriate exhibits showing the proposed location of the sign with respect to nearby structures and vegetation.
8.
The seal of a state registered engineer or architect shall be affixed to drawings of signs and/or sign structures where the sign face is in excess of 32 square feet certifying that it is designed in accordance with wind load requirements of the Florida Building Code.
A sign contractor shall provide a signed certificate stating that wind loading to withstand a pressure of 50 pounds per square foot when an application for signs less than or equal to 32 square feet in area is submitted.
(D)
Aesthetic qualifications.
(1)
Applicability. The following subsection describes basic aesthetic qualifications which apply to signs.
(2)
Basis. The aesthetic quality of a building, or of an entire neighborhood, is materially affected by achieving visual harmony of the sign on or about a structure as it relates to the architecture or the building or the adjacent surroundings. In addition to the limitations on signs imposed in Subsections (E) and (K), the following aesthetic considerations must be met.
(a)
Garishness. The overall effect of the lettering, configuration or color of a sign shall not be garish. "Garish" signs are those that are too bright or gaudy, showy, glaring, and/or cheaply brilliant or involving excessive ornamentation. Garish signs are not in harmony with and are not compatible with the building or adjacent surroundings.
(b)
Scale, design, and location. (Ord. No. 22-18, § 2, 11-27-18)
1.
Signs shall be appropriate in size, scale, and design for the neighborhood or streetscape where it is to be located. (Ord. No. 22-18, § 2, 11-27-18)
2.
Signs placed on structures shall be proportionate in size and scale to the building facade, designed consistently with the building architecture, and positioned harmoniously with building features; architectural features shall not be provided solely for the purpose of accommodating signage, but shall relate to building location, function, and use. (Ord. No. 22-18, § 2, 11-27-18)
(c)
Quality. All signs shall have a professional appearance that enhances the visual aesthetics of the area.
(E)
Sign design standards. The following subsections describe basic standards that apply to signs. The application of these standards to specific types of signs and their location in specific zoning districts is set forth in Table 4.6.7(A), Sign standards per zoning district. (Ord. No. 53-20, § 2, 3-2-21)
(1)
Types of signs.
(a)
Free-standing sign. A free-standing sign is not affixed to any other structure and is limited to no more than two faces. It may be either a pole sign or a monument sign. All signs erected on a pole shall contain a pole cover. All freestanding signs shall contain the street number.
(b)
Projecting sign. A sign affixed to a structure and which extends at a right angle from the building. A projecting sign shall not have more than two sign faces.
(c)
Under canopy sign. A sign hung from a canopy or roof of a walkway. It may be rigid or it may swing. Such a sign may not have more than two sign faces.
(d)
Wall sign. A wall sign may be flush mounted or hand painted. Such a sign may be applied to a canopy/awning, mansard, or building face.
(2)
Sign Measurements.[9] (Ord. No. 53-20, § 2, 3-2-21)
(a)
Area. Sign area is measured in square feet or square inches inclusive of each sign face and side. (Ord. No. 53-20, § 2, 3-2-21)
1.
The sign face includes any background material, panel, trim, color, and direct or self-illumination used that differentiates the sign from the building, structure, backdrop surface, or object upon which, or against which, it is placed. When there is no differentiation between the sign and the building or structure, the sign area shall be determined using a rectangle just large enough to include all lettering, illustrations, ornamentation, symbols, or logos. (Ord. No. 53-20, § 2, 3-2-21)
2.
A sign structure, such as a pole or monument base, shall not be included in the sign area measurement provided that no lettering, illustrations, ornamentation, symbols, or logos are displayed on, or designed as part of, the sign. (Ord. No. 53-20, § 2, 3-2-21)
(b)
Height. Height is the vertical distance measured from the highest point of the sign to the grade at the base of the sign. (Ord. No. 53-20, § 2, 3-2-21)
(c)
Setback. Setback is the distance measured from the closest portion of the sign to the ultimate right-of-way. (Ord. No. 53-20, § 2, 3-2-21)
(3)
Location requirements. Standard sign location requirements are set forth in Table 4.6.7(A). The following supplemental location standards apply per sign type. (Ord. No. 53-20, § 2, 3-2-21)
(a)
Free-standing signs. (Ord. No. 53-20, § 2, 3-2-21)
1.
Free-standing signs shall have a setback of ten feet or the minimum special setback required per Section 4.3.4(H)(6), whichever is greater. (Ord. No. 53-20, § 2, 3-2-21)
2.
For properties required to provide a setback of ten feet, free-standing signs may be partially or entirely located within the setback, subject to the following criteria: (Ord. No. 53-20, § 2, 3-2-21)
a.
The sign height is a maximum of seven feet; and (Ord. No. 53-20, § 2, 3-2-21)
b.
The sign area for that portion of the sign within the setback is a maximum of 20 square feet and the total sign area is a maximum of 40 square feet. (Ord. No. 53-20, § 2, 3-2-21)
3.
For properties required to provide special setback areas, pursuant to Section 4.3.4(H)(6), free-standing signs may be partially or entirely located within the setback, subject to the following criteria: (Ord. No. 53-20, § 2, 3-2-21)
a.
Signs that are set back ten to 20 feet are allowed a maximum area of 40 square feet and a maximum height of seven feet. (Ord. No. 53-20, § 2, 3-2-21)
b.
Signs that are set back 20 to 30 feet are allowed a maximum area of 96 square feet and a maximum height of 14 feet. (Ord. No. 53-20, § 2, 3-2-21)
(b)
Wall signs and under canopy signs. (Ord. No. 53-20, § 2, 3-2-21)
1.
Wall signs and under canopy signs may be located within the setback, including special setback areas pursuant to Section 4.3.4(H)(6); or (Ord. No. 53-20, § 2, 3-2-21)
2.
Wall signs and under canopy signs within the CBD or OSSHAD with CBD Overlay zoning districts may be located partially or entirely in the public right-of-way provided that the building or arcade was legally constructed with smaller setbacks or without setbacks. (Ord. No. 53-20, § 2, 3-2-21)
(c)
Projecting signs. (Ord. No. 53-20, § 2, 3-2-21)
1.
Projecting signs may be located within the setback, including special setback areas pursuant to Section 4.3.4(H)(6); or (Ord. No. 53-20, § 2, 3-2-21)
2.
Projecting signs within the CBD or OSSHAD with CBD Overlay zoning districts may be located partially or entirely in the public right-of-way provided that the building or arcade was legally constructed with smaller setbacks or without setbacks, subject to the following: (Ord. No. 53-20, § 2, 3-2-21)
a.
Projecting signs that extend into the right-of-way more than two feet from the face of the building or contain more than five square feet are subject to approval by either the Site Plan Review and Appearance Board or Historic Preservation Board. (Ord. No. 53-20, § 2, 3-2-21)
b.
Projecting signs may extend from the face of the building located under an arcade. Projecting signs shall not extend from the exterior face of an arcade. (Ord. No. 53-20, § 2, 3-2-21)
(4)
Obstructions. Signs shall not obscure or be obscured by another sign, structure, or existing vegetation. (Ord. No. 53-20, § 2, 3-2-21)
(5)
Safety. Signs shall not create a hazard to automotive or pedestrian traffic. (Ord. No. 53-20, § 2, 3-2-21)
(6)
Illumination. (Ord. No. 53-20, § 2, 3-2-21)
(a)
Signs may be illuminated directly or indirectly unless specifically prohibited. (Ord. No. 53-20, § 2, 3-2-21)
(b)
In residential zoning districts, all sign illumination shall provide cutoff luminaire. (Ord. No. 53-20, § 2, 3-2-21)
(7)
Design prohibitions. (Ord. No. 53-20, § 2, 3-2-21)
(a)
Intermittent lighting, animation, moving or rotating signs. A sign shall not involve intermittent lighting, animation, motion or rotation of any part of a sign structure or display; except for governmental traffic signals, traffic devices and traffic signs as required by law. (Ord. No. 53-20, § 2, 3-2-21)
(b)
Noise producing signs. A sign shall not produce noise or sounds. (Ord. No. 53-20, § 2, 3-2-21)
(c)
Obscene signage. A sign shall not exhibit thereon any lewd, lascivious, or obscene, character, or illustration. (Ord. No. 53-20, § 2, 3-2-21)
(d)
Restrictions as to functions. The use of a sign may be restricted to functions as set forth in Table 4.6.7(A), Sign standards per zoning district, under the column of "Type of Sign." (Ord. No. 53-20, § 2, 3-2-21)
(e)
Smoke or odor producing signs. A sign shall not produce or emit smoke, vapor, particles, or odor. (Ord. No. 53-20, § 2, 3-2-21)
(8)
Agreement required. When a sign requires a permit and is located within an easement or right-of-way, an agreement in a form acceptable to the City Attorney shall be executed between the property owner and the City. The agreement shall be executed by the City Manager, or their designee. A performance bond or acceptable substitute guarantee may be required. (Ord. No. 53-20, § 2, 3-2-21)
(9)
Sign standards per zoning district. Table 4.6.7(A), Sign standards per zoning district, establishes the standards for various types of signs per zoning district. (Ord. No. 53-20, § 2, 3-2-21)
(Ord. No. 53-20, § 2, 3-2-21; Ord. No. 23-22, § 12, 8-16-22)
(F)
Signs requiring permits.
(1)
General. All signs, other than those exempted by Subsection (H) or prohibited by Subsection (J), must obtain a sign permit. Applications for sign permits shall be submitted and processed pursuant to these LDRs. Sign permits shall be issued by the Development Services Department under the direction of the Director for the following: (Ord. No. 41-22, § 3, 1-17-23)
(a)
Master and blanket sign program signs. Individual signs being permitted under the provisions of an approved Master Sign Program or Blanket Program.
(b)
Signs meeting standards. Individual signs which conform in all respects to the provisions of Subsection (E) and (K) of this Section.
(c)
Special purpose signs. Which comply with the requirements of Subsection (F)(3).
(2)
Master sign and blanket sign programs.
(a)
Blanket sign program. A Blanket Sign Program may be required for a commercial property establishing the font, color, size and locations of signs on a multiple tenant building. A Blanket Sign Program shall be approved by the Site Plan Review and Appearance Board or the Historic Preservation Board if the project is in a historic district or historically designated site. After approval of a Blanket Sign Program, individual signs consistent therewith shall be administratively approved.
(b)
Master sign program. A Master Sign Program is to be used when the development of a project is of such a scale or character that the normal application of the design and/or aesthetic standards of Subsections (D) and (E), respectively, will not result in an effective sign program and signing more permissive than said standards is necessary. Approval of a Master Sign Program may include the automatic granting of waivers and/or adjustments to the provisions of Subsections (D) and (E) provided that the intent of the sign code is maintained and the character of the community and neighborhood is not diminished. A Master Sign Program shall be approved by the Site Plan Review and Appearance Board or if the project is in a historic district or historically designated site, by the Historic Preservation Board. After approval of a Master Sign Program, individual signs consistent therewith shall be administratively approved.
(c)
Nothing contained herein shall prevent diversity and creativity of individual signs in the Master Sign Program.
(3)
Special purpose signs and signing. Permits for the following signs may be issued administratively provided that the provisions contained herein are complied with.
(a)
Gasoline pricing signs. Signs may advertise the price of gasoline subject to the following restrictions:
1.
Not more than 12 square feet per sign face.
2.
If free standing, it shall not exceed five feet in sign height.
3.
If a part of a permanent free standing sign, the price sign shall be included in the area of the permanent sign.
4.
One sign is permitted per frontage with a maximum of two signs per site.
5.
Signs placed on pumps shall not exceed three square feet per sign face nor a total of six square feet per sign.
(b)
Grand opening banner. One banner may be placed on the building of a newly opened business pursuant to the following:
1.
Display is limited to four weeks.
2.
The banner shall not exceed an area of 50 square feet.
3.
The banner may not be more than 15 feet above the grade, and must be placed on the building of the business, in the front of the business.
4.
Banners shall be made of color fast material.
(c)
Historic signing. Signs which are building mounted or free-standing which provide information of historic value. Said signing shall not exceed six feet above grade when free-standing and shall not exceed three square feet in area in any circumstance. Such signing shall not be permitted until approval has been gained from the Historic Preservation Board.
1.
Maintenance of nonconforming nostalgic signs.
(i)
Signs that have an historic or nostalgic appeal, and constitute artistic expression, and not solely advertising may be exempted from the removal requirements if a recommendation by the Historic Preservation Board is approved by the City Commission. In considering whether to recommend that the existing nonconforming sign be designated as nostalgic, the Historic Preservation Board shall consider the sign's value as a part of the historical, cultural, aesthetic, and architectural heritage of the city, state, or nation. The Historic Preservation Board shall review the criteria contained in Section 4.5.1, of the Land Development regulations prior to making its recommendation.
(ii)
An owner of property on which an existing nonconforming sign is located may request the Historic Preservation Board to recommend to the City Commission that the existing nonconforming sign be designated as a "nostalgic sign."
(iii)
Any existing nonconforming sign designated as a nostalgic sign must be maintained in good condition. If at any time the sign becomes unsightly, or becomes a danger to the public health, safety, or welfare, the City Commission, following notification to the owner, may remove the nostalgic designation and set a date by which time the sign must be removed.
(d)
Drive thru window signs. Signs used by businesses in conjunction with service at a drive-thru window may be permitted as long as the size of the menu board does not exceed seven feet in height, nor 24 square feet in size. A maximum of two signs per drive thru window.
(e)
Special event non-roadway banner signing. Special signing, in accordance with this Subsection, may be allowed by the Chief Building Official or his/her designee, for special events if it is determined that the sign type meets the following criteria: (Ord. No. 41-22, § 3, 1-17-23)
1.
the sign provides notice to the public of a public meeting or other public event,
2.
the sign is temporary and for a limited time, and
3.
the sign, if allowed for a limited time, must meet the following criteria:
(i)
the sign will not conceal or obstruct adjacent land uses or signs,
(ii)
the sign will not conflict with the principal permitted use of the site or adjoining sites,
(iii)
the sign will not interfere with, obstruct vision of or distract motorists, bicyclists or pedestrians, and
(iv)
the sign will be installed and maintained in a safe manner. The approval, or disapproval, of such sign shall not be based on the content of the message contained (i.e., the viewpoint expressed) on such sign. The Chief Building Official or his/her designee shall render a decision within 14 days after an application is made for utilizing this sign type for a special event. Such a decision shall be deemed an administrative interpretation and any person adversely affected has the right to appeal the decision to the City Manager.
4.
Each sign limited to less than twenty square feet (20 sq.ft.) in area;
5.
Allowed 14 days prior to the event and must be removed by the second day after the event.
(f)
Special event roadway banner signing. (Ord. No. 41-22, § 3, 1-17-23)
1.
Roadway banner signs. May be approved and issued by the Sign Administrator under the direction of the Director of Community Improvement, for special events. Such signing shall be subject to the following standards:
(i)
The Roadway Banner Sign must be no more than three feet in height by 24 feet in length, and placed at least 15 feet above the surface of the roadway on City installed poles. The Roadway Banner sign must be constructed with a standard vinyl awning material and meet wind load requirements.
(ii)
The text of a roadway banner shall be limited to the name of the special event, the date or dates of the event and the name or logo of the City and the name or logo of the association or organization co-sponsoring the event.
(iii)
Display of the Roadway Banner Sign will be limited to a maximum of 14 days prior to the event and must be removed by no later than two days after the event.
(iv)
Roadway Banner Signs will only be allowed to be displayed at the following intersections within the City limits and on City installed poles:
•
NE 1st Avenue and East Atlantic Avenue;
•
Pineapple Grove Way and East Atlantic Avenue within the arch area;
•
Swinton and East Atlantic Avenue; and
•
NE 5th Avenue and West Atlantic Avenue.
(v)
the sign will not conceal or obstruct adjacent land uses or signs,
(vi)
the sign will not conflict with the principal permitted use of the site or adjoining sites,
(vii)
the sign will not interfere with, obstruct vision of or distract motorists, bicyclists or pedestrians, and
(viii)
the sign will be installed and maintained in a safe manner. The approval, or disapproval, of such sign shall not be based on the content of the message contained (i.e., the viewpoint expressed) on such sign. The Chief Building Official or his/her designee shall render a decision within 14 days after an application is made for utilizing this sign type for a special event. Such a decision shall be deemed an administrative interpretation and any person adversely affected has the right to appeal the decision to the City Manager.
(g)
Subdivision identification signs. Residential subdivision identification signs shall be located only at the entrance to the subdivision and subject to the following standards: (Ord. No. 41-22, § 3, 1-17-23)
1.
Such signs may be either one double-faced sign or two signs where there are two walls at the entrance and where the signs are permanently affixed to the walls at each entrance of the subdivision;
2.
Each sign area shall be no greater than 36 square feet in area;
3.
Such subdivision entrance signs are permitted within all residential zoning districts;
4.
Such subdivision entrance signs may be erected within rights-of-way or median strips adjacent to the subdivision if approved by the City. A subdivision sign may also be located within the setbacks of private property within the subdivision or adjacent to the subdivision or adjacent to the subdivision within the guidelines set forth in 4.6.7(E)(3), if such sign was in existence as of July 1, 1988.
5.
Any such sign erected within a right-of-way or setback shall be at least ten feet from a paved roadway and signs located within a median shall be at least five feet from any paved roadway;
6.
Any such signs approved for location within the right-of-way or median, if such right-of-way or median is not within the jurisdiction of the City, shall obtain written permission from the governmental entity controlling the right-of-way or median to erect the sign in a requested and approved location;
7.
Any signs proposed to be located on adjacent private property shall be approved and permitted by the owners of the adjacent property. Any such signs lying on private property shall be considered an additional permitted sign without regard to other applicable sections of this code; and
8.
All signs proposed to be located within a right-of-way or median shall be reviewed and approved by the City Engineer or appointed designee for compliance with this section.
(h)
Temporary identification signs. Temporary identification signs shall be subject to the following standards: (Ord. No. 41-22, § 3, 1-17-23)
1.
Freestanding Sign: One sign per street frontage, non-illuminated, with a sign area of not more than 32 square feet, nor more than seven feet in height.
2.
Sign Located on a Building: One sign per building frontage, non-illuminated with a sign area of not more than 32 square feet.
3.
The sign may be installed at the time of submission of a building permit application. It must be removed upon expiration of building permit or building permit application or when the project obtains a Certificate of Occupancy.
(i)
Valet parking signs. Signs for Valet Parking shall be allowed subject to the following restrictions: (Ord. No. 41-22, § 3, 1-17-23)
1.
One pole mounted sign per approved Valet Queue, meeting the requirements of valet parking agreements.
2.
Valet Parking signs shall be manufactured and installed by the City. The sign area shall not exceed six square feet in area. Such sign shall be pole mounted and inserted in a ground sleeve. The location of such sign shall be determined by the City. The sign must be removed and stored inside the business daily during business hours when the approved valet queue is not in use.
3.
Traffic control cones may be used for queuing purposes, however they shall not contain any additional signage or markings.
(G)
Non-commercial message. Notwithstanding anything contained in Section 4.6.7 "Signs", to the contrary, any sign erected pursuant to the provisions of this Code may, at the option of the applicant, contain either a non-commercial message unrelated to the business located on the premises where the sign is erected or a commercial message related to the business and located on the business premises. The non-commercial message may occupy the entire sign face or portion thereof. The sign face may be changed from commercial to non-commercial messages as frequently as desired by the owner of the sign, provided that the size and design criteria conform to the applicable portions of this section, the sign is allowed by this Code, the sign conforms to the requirements of the zoning designation and the appropriate permits are obtained. Noncommercial copy may be substituted for commercial copy wherever commercial copy appears. For the purposes of Section 4.6.7, non-commercial messages, by their very nature, shall never be deemed off-premises.
(H)
Exempt signs. The following signs are allowed to be erected on private property in the City of Delray Beach, pursuant to the limitations set forth herein, and do not require a permit:
(1)
Automated teller machine (ATM) panels. One panel which is physically constructed within and is an integral part of an ATM, and bears the name of the ATM system to which it belongs.
(2)
Directional signs. Such signs shall not extend more than five feet from the ground and shall not be greater than four square feet in area.
(3)
Flags.
(a)
Flags may be displayed on any residential or non-residential parcel of land in accordance with the following rules:
1.
A Flag is a piece of cloth usually attached at one edge to a staff/pole or cord.
2.
No more than three flags may be placed upon any parcel or development less than one acre in size which is zoned and used for non-residential purposes.
3.
For parcels or developments equal to or greater than one acre in area that are zoned and used for non-residential purposes, no more than one flag per 15,000 square feet of lot area shall be allowed.
(b)
Two flags may be flown at a time when model homes or model apartments are open for inspection.
(4)
Hours of operation signs. Signs denoting hours of operation shall be non-illuminated; have a sign face of not more than one square foot and be located close to the entry of the business.
(5)
Instructional signs. Instructional signs are signs which convey instructions with respect to the premises on which it is located, such as "no trespassing", a danger sign, and similar signs (other than parking signs). Such signs shall not extend more than five feet from the ground and shall not be greater than three square feet in area.
(6)
Nameplates. One nameplate sign per building, not exceeding three square feet in area, of a noncommercial nature, and bearing the name or street address of the principal occupant.
(7)
Non-residential.
(a)
Non-residential real estate signs.
1.
One freestanding real estate sign along each street frontage, including those located within a historic district.
2.
Non-residential Real Estate Signs shall not exceed 16 square feet, and shall be limited to seven feet in height.
3.
Within a non-residential property located in a Historic District, real estate signs shall not exceed 16 square feet, and shall be limited to seven feet in height.
(8)
Residential.
(a)
Residential real estate signs.
1.
One sign per lot, the sign being not greater than three square feet in area on residentially zoned property, however, where a lot is bordered by more than one street, one sign may be erected on each street; [Amd. Ord. 14-07 5/1/07]
2.
One additional sign per lot may be erected on a lot which borders a waterway, provided that the additional sign is located along the waterway. Such sign shall not exceed nine square feet in area; [Amd. Ord. 14-07 5/1/07]
3.
All real estate signs shall be non-illuminated; [Amd. Ord. 14-07 5/1/07]
4.
An additional sign or "rider" sign, of not greater than three square feet, may be attached to or accompany a real estate sign.
(9)
Window signs.
(a)
Plastic or painted signs may be placed upon windows when limited to 20 percent of the aggregate glass area, per tenant space or per main use.
(b)
Paper signs displayed two feet or more from the inside of the glass but which are visible from the outside shall be limited to 20 percent of the aggregate window area, per tenant space. [Amd. Ord. 14-07 5/1/07]
(10)
Temporary signs.
(a)
Temporary non-commercial signs.
1.
Temporary non-commercial signs may be placed on public rights-of-way contiguous to private property with the adjacent private property owner's permission. Such signs shall not be placed in medians or on portions of rights-of-way contiguous to publicly owned property. [Amd. Ord. 34-08 8/19/08]; [Amd. Ord. 14-07 5/1/07]
2.
Each temporary non-commercial sign within a public right-of-way shall be removed within ten days after the date of event, election or referendum. If said signs are not removed prior to the expiration of the ten-day period, the sign shall constitute an abandoned sign and the City shall remove the sign. [Amd. Ord. 14-07 5/1/07]
3.
Temporary non-commercial signs are permitted on private property with the owner's permission; however, no temporary non-commercial sign shall exceed 12 square feet per sign face in area on any private lot or parcel. Signs may not be placed in a location that constitutes a safety hazard or hindrance to pedestrian or vehicular traffic. [Amd. Ord. 34-08 8/19/08]
4.
Any temporary non-commercial sign in the public right-of-way shall not exceed three square feet. No temporary non-commercial sign shall be placed on any public property (non-right-of-way). Signs may not be placed in a location that constitutes a safety hazard or hindrance to pedestrian or vehicular traffic. [Amd. Ord. 34-08 8/19/08]; [Amd. Ord. 14-07 5/1/07]
(b)
Sponsorship signs. [Amd. Ord. 53-09 10/20/09] [New Section Enacted by Ord. 13-08 4/01/08]
1.
Sponsorship signs may be attached to the inside face of the fence surrounding the field at any sports field within the City so long as the advertising on the signs is not visible outside of the sports field area.
2.
Each sponsorship sign shall not exceed 32 square feet.
(11)
Tenant panels. A change of a tenant panel in a directory sign, or a sign which accommodates a tenant, is exempt from needing a permit provided that the sign was permitted and there is no change in colors or letter style.
(I)
Exempt signs requiring city manager or his/her designee's approval.
(1)
Wayfinder and directional signs within public rights-of-way.
(a)
the sign provides notice to the public of a public meeting or other public event,
(b)
An off-premise sign designed to guide or direct pedestrians or vehicular traffic and it also may include kiosks that provide information of general benefit to the community, and
(c)
the sign, if allowed for a limited time, will meet the following criteria:
1.
the signs will not conceal or obstruct adjacent land uses or signs,
2.
the signs will not conflict with the principal permitted use of the site or adjoining sites,
3.
the signs will not interfere with, obstruct vision of or distract motorists, bicyclists or pedestrians, and
4.
the signs will be installed and maintained in a safe manner.
5.
The approval, or disapproval, of such signs shall not be based on the content of the message contained (i.e., the viewpoint expressed) on such signs. The City Manager or his/her designee shall render a decision within ten days after an application is made for utilizing this sign type at a special event. Such a decision shall be deemed an administrative interpretation and any person adversely affected has the right to appeal the decision to the City Commission.
6.
Directional signs shall be no greater than eight inches by 30 inches per sign. The City Engineer must inspect each proposed location for traffic obstruction.
(J)
Prohibited signs. The following signs, or sign features, are prohibited within the City of Delray Beach; however, exceptions as noted herein are allowed. It shall be unlawful for any persons to erect prohibited signs or use prohibited sign features. Further, any sign not provided for, or expressly permitted by these LDRs is also prohibited.
(1)
Banners and wind signs.
(a)
Banners: Prohibited.
(b)
Wind signs: Prohibited.
(2)
Off-premise signs. A sign, including building signs, that advertise an establishment, merchandise, service, or entertainment which is sold, produced, manufactured, or furnished at a place other than the property on which the sign is located, however, non-commercial messages shall never be off-premises.
(3)
Roof sign. A sign or any portion of a sign which is located on the roof or top of the building or which projects above the roof eave of a gable or hip roof or above the top of a parapet, tower, or any other architectural feature. (Ord. No. 22-18, § 3, 11-27-18)
(4)
Snipe signs. Snipe signs are prohibited.
(5)
Traffic confusion. A sign or other advertising matter erected at the intersection of any streets or in any street right-of-way in manner as to obstruct free and clear vision; or at any location where, by reason of the position, shape, or color, it may interfere with, obstruct the view of, or be confused with any authorized traffic sign, a traffic signal, or traffic device; or which makes use of the words "stop", "look", "drive-in", "danger", or any other word, phrase, symbol, or character in a manner as to interfere with, mislead, or confuse vehicular traffic.
(6)
Vehicular signs. Signs placed on vehicles or trailers that are parked in the street, public right-of-way or on private property for the primary purpose of displaying the sign for advertising a commercial enterprise.
(7)
Waterbourne signs. No sign or advertising shall be displayed on a vessel plying the waterways, excluding, the identification of the vessel.
(8)
Commercial signs in public rights-of-way: Prohibited, except as allowed in Section 4.6.7(E)(3). (Ord. No. 53-20, § 3, 3-2-21)
(K)
Structural standards. In addition to provisions of the Standard Building Code and provisions of Chapter 7 of this Code, the following structural standards shall be required for all signs erected in the City.
(1)
Securing signs. Wall signs shall be securely attached to the building or structure by means of metal anchors, bolts, or expansion screws. No wood blocks or anchorage with wood used in connection with screws or nails shall be considered proper anchorage, except in the case of wall signs attached to buildings or structures with walls of wood. No wall sign shall be entirely supported by an unbraced parapet wall.
(2)
Wind loading. Every sign shall be constructed in a manner as to withstand 140 miles per hour wind. Sign contractors or the owner shall submit plans showing location, structural members, and design calculations for wind loading and for signs 32 square feet or over, a certification sealed by a state registered engineer or architect stating that the design will meet the requirements of this code shall be submitted. All sign contractors shall sign a certificate stating wind loading will meet requirements of this chapter where signs under 32 square feet are submitted.
(L)
Removal of signs.
(1)
Removal and disposition of non-complying signs.
(a)
It shall be unlawful to erect, use or maintain a sign or sign structure when it does not comply with the requirements of Section 4.6.7. The City is authorized to remove unlawful signs and sign structures pursuant to the provisions of Section 4.6.7.
(b)
Unauthorized signs are subject to removal pursuant to the following provisions:
1.
Temporary signs.
(i)
The City finds that, in view of the inexpensive nature of these signs and the administrative burden which would be imposed by elaborate procedural prerequisites prior to removal, any procedure other than summary removal of these signs when unlawfully erected and maintained would defeat the purpose of regulating such signs. The City Manager is hereby authorized to remove such signs when unlawfully erected and maintained, subject to the provisions contained below.
(ii)
After removal of a sign pursuant to this section, a notice will be sent, either in person or by first-class postage, prepaid, to the occupant of the property from which the sign was removed, and if the sign identifies a party other than the occupant of the property, the party so identified. The notice shall advise that the sign has been removed and shall state that the sign may be retrieved within 30 days of the date of the notice, and that, if the sign is not retrieved within 30 days, it will be disposed of by the City.
(iii)
The City shall dispose of all unclaimed signs after the expiration of the 30-day period.
2.
Permanent signs.
(i)
Signs and sign structures not subject to removal pursuant to (L)(1)(b)1.(i) above which are or have been erected or maintained unlawfully, may be referred to the code enforcement board for appropriate action or the City may proceed to pursue all remedies available at law or equity to it to remove signs or sign structures which are or have been unlawfully erected or maintained.
(2)
Unsafe signs. Notwithstanding the above provisions, any sign which is declared to be a dangerous sign shall be removed or made to conform with the current building code immediately, upon notice, by the Chief Building Official.
(M)
Penalty. Section 10.99, "General Penalty" of the Code of Ordinances of the City of Delray Beach shall apply.
(N)
Procedure to appeal permit denial.
(1)
Permit application may be denied for the following reasons:
(a)
The application for permit is not fully completed and executed;
(b)
The applicant has not tendered the required application fee with the application;
(c)
The application for permit contains a material falsehood or misrepresentation;
(d)
The applicant has not complied or cannot comply with applicable licensure requirements, ordinances or regulations of the City.
(2)
If permit application was denied, it may be appealed to the Circuit Court of Palm Beach County within 30 days of the decision.
(O)
Severability.
(1)
Generally. If any part, section, subsection, paragraph, subparagraph, sentence, phrase, clause, term, or word of this Article is declared unconstitutional by the valid judgment or decree of any court of competent jurisdiction, the declaration of such unconstitutionality shall not affect the following subsections of this Article, Section 4.6.7(E)(7), "Design Standards Matrix" and Section 4.6.7(G), "Non-Commercial Message".
(2)
Severability where less speech results. Without diminishing or limiting in any way the declaration of severability set forth above in subsection (O)(1) or elsewhere in this Article, this code, or any adopting ordinance, if any part, section, subsection, paragraph, subparagraph, sentence, phrase, clause, term, or word of this Article is declared unconstitutional by the valid judgment or decree of any court of competent jurisdiction, the declaration of such unconstitutionality shall not affect Subsections 4.6.7(E)(7) and 4.6.7(G) of this Article, even if such severability would result in a situation where there would be less speech, whether by subjecting previously exempt signs to permitting or otherwise.
(3)
Severability of provisions pertaining to prohibited signs. Without diminishing or limiting in any way the declaration of severability set forth above in subsection (O)(1) or elsewhere in this Article, this code, or any adopting ordinance, if any part, section, subsection, paragraph, subparagraph, sentence, phrase, clause, term, or word of this Article or any other law is declared unconstitutional by the valid judgment or decree of any court of competent jurisdiction, the declaration of such unconstitutionality shall not affect any other part, section, subsection, paragraph, subparagraph, sentence, phrase, clause, term, or word of this Article that pertains to prohibited signs, including specifically those signs and sign-types prohibited and not allowed under Subsection 4.6.7(J) is declared unconstitutional by the valid judgment or decree of any court of competent jurisdiction, the declaration of such unconstitutionality shall not affect any part, word or paragraph of Subsections 4.6.7(E)(7) and 4.6.7(G), thereby ensuring that sign height, size and location continue to be regulated.
Editor's note— Ord. No. 53-20, § 2, adopted March 2, 2021, repealed subsections 4.6.7(E)(2)—(7) and enacted new subsections (E)(2)—(9). Former subsections (E)(2)—(7) pertained to similar subject matter.
All developments/redevelopments are encouraged to utilize energy efficiency lighting.
Artificial lighting used to illuminate premises shall be directed in such a way to minimize light spillover on adjacent properties and reduce urban glow. In general any lighting requirements not covered by this section should follow the standards in the latest edition of ASHRAE/IESNA related to Exterior Lighting. When lighting is proposed within the vicinity of the beach it shall comply with all other City of Delray Beach Code Sections, including, but not limited to, Section 91.51 (Sea Turtles) which requires that all lighting shall be screened or shielded so that the light is not visible from the beach. In addition, the following standards shall be adhered to: [Entire Section Amended by Ord. 41-08 11/3/08]
(A)
General requirements.
(1)
Luminaries height. The following chart indicates maximum heights allowed for luminaries.
Table 1
(2)
Cutoff luminaire required. All perimeter exterior lighting shall be full cutoff luminaries to minimize spillover on adjacent properties. In order to decrease urban glow, no luminaries shall be directed upwards.
(3)
Illumination standards. The following illumination standards shall be adhered to:
Table 2
Notes:
1. The first row closest to public rights-of-way of display outdoor sales may be increases to a max of 20 foot candles.
2. Fully shielded bollards not greater than 42 inches in height may be permitted up to a max of 20 foot candles.
3. The values for entrance area only applies to the first 66 feet inside the structure as it is needed to effect a transition from bright daylight to lower internal levels.
(4)
Night hours reduction and security. Full cutoff luminaries shall be used for all security lighting and dusk-to-dawn area lighting. Outdoor illumination, including areas used for outdoor sales and display, eating, parking, assembly, service of equipment and freight, loading and unloading, repair, maintenance, commercial activities and industrial activities shall not continue after 11:00 p.m., or more than one hour after active use of the area ceases, whichever is later, except for security lighting. Security lighting shall be required for all active entrances to buildings, parking lots and access to buildings or parking lots. All security lighting shall maintain lighting levels as indicated in Table 2 and shall operate from dusk until dawn. No outdoor recreational facility shall be illuminated after 11:00 p.m. except to conclude a scheduled or sanctioned recreational or sporting event by City of Delray Beach or other authorized agency in progress prior to 11:00 pm. The luminaries shall be extinguished after outdoor recreational events are completed and the site has been vacated. Exceptions would include recreational facilities that are open to the public on a 24-hour basis.
(B)
Requirements for outdoor parking areas and commercial sites.
(1)
Standards. The complete installation of the area lighting system shall comply with applicable local codes and ordinances and meet the recommended illumination levels and uniformity ratios of the Illuminating Engineering Society of North America (I.E.S.), as set forth in this specification. The responsibility for performance to this specification, in its entirety, cannot be split up among individual suppliers of components comprising the system, but must be assumed solely by a single supplier.
(2)
Testing. Upon completion of installation, the system shall be subject to inspection by the City Engineer, at his discretion, to determine compliance with criteria set forth herein. Computer verification shall be made available upon his request.
(3)
Design criteria.
(a)
General. In determining a lighting design, consideration shall be given to the architectural and environmental aspects of the facility it is to serve. This consideration shall be instrumental in determining type of fixture mounting height, and light source.
(b)
Light control and spillage. For perimeter exterior lighting, only full cutoff luminaries will be approved. The applicant is encouraged to minimize light spillage from building and site and to reduce urban-glow for the development/redevelopment proposed. Maximum allowable illumination at the property line of any adjoining parcel or public right-of-way is 0.25 horizontal and vertical foot-candles measured at six feet above grade level.
(C)
Street light requirements. Street light requirements for public rights-of-way shall meet the requirements of the City's Street Light Policy.
(D)
Temporary lighting. Lighting classified as temporary lighting for public festivals, celebrations and the observance of holidays are exempt from this section.
(E)
Deviations. Lighting may vary from this Section to the extent necessary to comply with specific State requirements, i.e., increased intensity required for automatic bank teller areas, etc.
(A)
Purpose and intent. The purpose of this Section is to ensure that adequate off-street parking is provided and maintained to meet the needs of users of structures and usage of land. All parking areas shall be designed and situated to protect public safety and to mitigate potential adverse impacts on adjacent uses or properties. It is the responsibility of the developer of property to provide and maintain adequate off-street parking. [Amd. Ord. 46-96 11/5/96] (Ord. No. 14-24, § 5, 12-10-24)
(B)
Applicability.
(1)
Off-street parking facilities shall be provided in the following situations:
(a)
For any new building constructed;
(b)
For any new category of use established including a new conditional use;
(c)
For any addition or enlargement of an existing building or use;
(d)
For any change in the occupancy of an existing building or the manner in which a use is conducted that would result in additional parking spaces being required.
(2)
For items (c) and (d) from above, the additional parking spaces shall be required only for such addition, enlargement, or change and not for the entire building or use, unless required as a condition of approval associated with the approval of the addition, enlargement, or change.
(3)
When existing parking is diminished by an addition or enlargement and such parking had been previously required, or would be required if the use were established at this point in time, such parking spaces must be replaced and be in addition to those spaces required for the addition or enlargement.
(4)
Notwithstanding the foregoing, effective January 1, 2005, if private land is acquired by a governmental entity for parking or park purposes, the parking spaces attributed to the demand created by the building square footage and use that existed on the land acquired by the governmental entity (less the number of spaces that existed on the property so acquired) shall be credited to land owned by private owner(s) if the land owned by the private owner(s) is located within 300 feet of the land acquired by the governmental entity for parking or park purposes. [Amd. Ord. 47-05 7/19/05]; [Amd. Ord. 80-04 1/18/05]
(5)
The requirements of this Section shall apply for temporary uses as well as permanent uses. [Amd. Ord. 80-04 1/18/05]
(C)
Number of parking spaces required. The number of parking spaces required for new buildings, new uses, additions, enlargements, or changes shall be determined by the following standards for uses and categories of use and types of parking spaces.
(1)
General provisions. The following apply in the application of this Subsection:
(a)
Fractions. When the determination of the number of required parking spaces results in a requirement of a fractional space, any fraction less than one-half space shall be rounded down to the nearest whole number and any fraction of one-half space or more shall be rounded up. [Amd. Ord. 01-09 1/20/09]
(b)
Handicapped spaces. Special parking spaces designed for use by the handicapped shall be provided pursuant to the provisions of Florida Accessibility Code for Building Construction. Such spaces shall not be in addition to, but shall substitute for, required parking. [Amd. Ord. 46-96 11/5/96]
(c)
Bicycle parking and Showers. Bicycle parking is required to meet recreational, transportation, or leisure purposes. Two types of bicycle parking and associated facilities may be required to meet the needs of different types of bicyclists. (Ord. No. 29-20, § 3, 11-10-20) [10]
1.
Bicycle parking shall be provided at the rate defined in Table 4.6.9(C)-1. (Ord. No. 29-20, § 3, 11-10-20)
2.
Type I bicycle parking is required and is intended to be used for short term bicycle parking by visitors. (Ord. No. 29-20, § 3, 11-10-20)
3.
Type II bicycle parking is required at certain thresholds and provides long term storage options for people who reside, work, or are visiting for an extended duration. (Ord. No. 29-20, § 3, 11-10-20)
4.
For uses not listed, new non-residential uses shall provide at least two Type I bicycle parking spaces and Type II bicycle parking spaces may be required for buildings greater than 20,000 square feet as determined by the Development Services Director, and based on a calculation required for a similarly intense use. (Ord. No. 29-20, § 3, 11-10-20)
5.
If required, showers and Type II bicycle parking shall be co-located in a building and provided in a safe, access restricted area or otherwise not accessible to the public at large. Design shall consider crime prevention as a part of design. Specifications for these facilities shall be included within the site plan. (Ord. No. 29-20, § 3, 11-10-20)
(Ord. No. 29-20, § 3, 11-10-20)
(d)
Uses not listed. Any use, or use category, which is not specifically listed herein shall have its parking requirement established at the time of approval of the site and development action associated with the new use or structure.
(e)
Design requirements apply, exceptions. The Design Requirements for parking lots as provided for in Section 4.6.9(D) shall apply to all parking spaces required in this subsection, except for specific provisions to the contrary contained herein. (Ord. No. 29-20, § 3, 11-10-20)
(f)
Requirements are cumulative. In situations where a combination of uses are developed on a site, parking requirements shall be determined for each of the uses according to the parking requirements set forth herein. An exception to this rule may be made, pursuant to Subsection (C)(8), Multiple Uses.
(g)
Compact car parking. Up to 30 percent of the required parking for any use may be designated for compact cars. Such approval may be granted concurrent with approval of the site and development plan. Spaces which are provided in excess of the number required may also be designated and designed as "compact car parking". [Amd. Ord. 46-96 11/5/96]
(2)
Requirements for residential uses.
(a)
Single family detached residences. Two spaces per dwelling unit. Tandem parking may be used in the Single Family (R-1) Residential Districts or Low Density Residential (RL) District. Required parking spaces shall not be located in the front setback or side street setback areas. For lots that are less than 60 feet wide and do not have alley access, one parking space may be located in either the front setback area or the side street setback area, provided that no more than 50 percent of the front and side street setback area may be improved for parking purposes. [Amd. Ord. 01-10 1/19/10] (Ord. No. 25-17, § 34, 7-18-17; Ord. No. 01-18, § 2, 2-6-18)
(b)
Duplexes. Two spaces per dwelling unit. Tandem parking may be used provided that such parking does not result in the space for one unit impeding access to a space of the other unit. Further, curb cuts or direct access from parking areas onto a street shall not exceed 24 feet in width. [Amd. Ord. 01-10 1/19/10] (Ord. No. 25-17, § 34, 7-18-17)
(c)
Multiple family structures. (Ord. No. 25-17, § 34, 7-18-17)
Within townhouse and townhouse type developments, parking may be provided in front of garage units provided that such parking does not result in the space for one unit impeding access to a space of the other unit. [Amd. Ord. 01-10 1/19/10; Amd. Ord. 37-01 7/10/01; Amd. Ord. 46-96 11/5/96]
(d)
Location of guest parking spaces. Guest parking spaces must be accessible to all visitors and guests and may be centralized or located near recreational features within a development project. A portion of guest parking spaces may be provided in stabilized sod pursuant to Section 4.6.9(D)(8). [Amd. Ord. 6-03 5/20/03; Amd. Ord. 28-99 8/17/99]
(3)
Requirements for commercial uses.
(a)
General commercial uses. Shall provide four and one-half spaces per 1,000 square feet of gross floor area that includes retail floor area, associated warehouse and storage floor area, and employee and management facilities. This use category includes Limited Indoor Dining Establishments. (Ord. No. 20-24, § 3, 11-4-24)
(b)
Convenience stores with associated gasoline sales. Shall provide four and one-half spaces per 1,000 square feet of gross floor area of the convenience store and any kiosk or cashier station.
(c)
Gasoline stations. With or without convenience food sales shall provide four and one-half spaces per 1,000 square feet of non-repair gross floor area and shall provide four spaces per service bay or lift. [Amd. Ord. 46-96 11/5/96]
(d)
Restaurants and stand alone bars. Shall provide 12 spaces per 1,000 square feet of gross floor area. [Amd. Ord. 10-12 4/3/12; Amd. Ord. 01-09 1/20/09] (Ord. No. 20-24, § 3, 11-4-24)
(e)
Shopping centers. Spaces required based upon size of center per gross leasable floor area, irrespective of uses: [Amd. Ord. 01-09 1/20/09]
(Ord. No. 20-24, § 3, 11-4-24)
(f)
Vehicle sales and rental. Including auto sales, auto rental agencies, recreational vehicle sales and rental, and truck sales and rental, shall provide four spaces per 1,000 square feet of total building(s) gross floor area, except indoor display areas. Required parking spaces shall be designated for employee, customer, and/or service use at the standard of, at least, one and one-half spaces per service bay and two spaces per 1,000 square feet of gross floor area (less indoor display area). Any remaining spaces may be used for display purposes. [Amd. Ord. 01-09 1/20/09] (Ord. No. 20-24, § 3, 11-4-24)
(g)
Personal service providers. (Beauty Salons, Spas, etc.): Shall provide four and one-half spaces per 1,000 square feet of gross floor area in buildings up to 5,000 square feet and four and one-half spaces per 1,000 square feet of gross floor area plus one-half spaces per work station in buildings greater than 5,000 square feet as it pertains to the personal service provider uses. (Work stations providing manicure services that include both manicure table and pedicure chair shall be calculated as one work station for each table and chair combined). [Amd. Ord. 48-06 9/19/06] (Ord. No. 20-24, § 3, 11-4-24)
(4)
Requirements for office uses.
(a)
Business and professional offices. Except governmental, medical, and call center offices, shall provide: [Amd. Ord. 22-11 7/19/11]
•
4 spaces per 1,000 sq.ft. of net floor area up to 3,000 square feet and then three and one-half spaces per 1,000 square feet of net floor area over the initial 3,000 square feet. [Amd. Ord. 01-09 1/20/09]
(b)
Governmental offices. Including public health and rehabilitative services, shall provide five spaces per 1,000 square feet of gross floor area.
(c)
Medical and dental offices. Including clinics and mental health treatment facilities, shall provide five spaces per 1,000 square feet of gross floor area.
(d)
Call centers. Two spaces per 1,000 square feet of gross floor area, plus one space per work station as shown on a floor plan schematic. [Amd. Ord. 22-11 7/19/11]
(5)
Requirements for industrial uses.
(a)
General. General Industrial Uses (manufacturing, assembly, attendant offices) shall provide parking at the rate of three spaces per 1,000 square feet of gross floor area devoted to such uses. In addition, 1 space shall be provided for each 1,000 square feet of gross floor area devoted to storage and warehouse use. [Amd. Ord. 01-09 1/20/09]
(b)
Vehicle paint, body, and repair shops. Shall provide four and one-half spaces per 1,000 square feet of gross floor area.
(c)
Vehicle wrecking and salvage yards. Shall provide one space per 10,000 square feet of lot area.
(6)
Requirements for recreational and community facilities either public or private.
(a)
Auditoriums, meeting places. Assembly halls, conference and meeting rooms, theaters, stadiums, civic centers, community theaters, cultural facilities, arts and crafts centers, and similar uses shall provide three-tenths of a parking space for each seat or one space for each 50 sq.ft. of gross floor area, whichever is greater. [Amd. Ord. 01-09 1/20/09]
(b)
Bowling establishments. Shall provide 4 parking spaces per lane.
(c)
Churches. Shall provide one space for every three seats provided in the sanctuary. Additional parking is not required for other uses on the church property (e.g. Sunday School, Day Care, Preschool, etc.) when such uses are operated as a part of, under the auspices of, the Church.
(d)
Clubs and lodges. Shall provide one space for every four seats or one for every 50 square feet of gross floor area, whichever is greater. [Amd. Ord. 01-09 1/20/09]
(e)
Educational facilities. Public or private, shall provide the following:
(f)
Fire stations. Shall provide one space for each employee on the shift with greatest employment.
(g)
Golf courses. A full golf course shall provide seven parking spaces per hole; an executive golf course shall provide four parking spaces per hole.
(h)
Miniature golf courses. Shall provide one and one-half parking spaces per hole.
(i)
Hospitals. Shall provide one and one-half spaces per bed, plus one-hundredth of one square foot of floor area in rooms for outpatient, emergency, and other special service areas open to the public.
(j)
Libraries. Shall provide four-thousandths of one square foot of gross floor area. [Amd. Ord. 01-09 1/20/09]
(k)
Museums. Shall provide five-thousandths of one square foot of floor area which is open to the public.
(l)
Police stations, public works complexes. Shall provide four-thousandths of one square foot of gross floor area. This requirement shall encompass all uses on the premises. [Amd. Ord. 01-09 1/20/09]
(m)
Post offices. Shall provide five-thousandths of one square foot of gross floor area in addition to a parking area for employees. [Amd. Ord. 01-09 1/20/09]
(n)
Swim clubs. Shall provide one-thirtieth of one square foot of total water surface.
(o)
Tennis clubs. Shall provide four spaces per court.
(p)
Community facilities within planned residential developments. Shall provide parking sufficient to accommodate guest, service and local needs recognizing that residents have other means of access. The parking shall be pursuant to an approved site plan. [Amd. Ord. 46-96 11/5/96]
(q)
Parks. Shall have the parking needs assessed and determined by the City Manager or designee.
(r)
Yacht clubs. One space per 1,000 square feet of gross floor area and outdoor seating/eating area plus one-half spaces for each boat slip. [Amd. Ord. 01-09 1/20/09]; [Amd. Ord. 46-96 11/5/96]
(7)
Other uses.
(a)
Abused spouse residence. One space per sleeping room plus one space for each shift employee.
(b)
Nursing homes. Shall provide one space for each four beds. [Amd. Ord. 02-10 1/19/10]; [Amd. Ord. 4-04 2/3/04]; [Amd. Ord. 35-00 1/2/01] (Ord. No. 25-17, § 35, 7-18-17)
(c)
Assisted living facilities. that do not comport with the definition of "community residence" and Continuing Care Facilities: Facilities shall provide 1.5 spaces per unit. (Ord. No. 25-17, § 35, 7-18-17)
(d)
Bed and breakfast inns. Shall provide one per guest room and one for the manager/owner.
(e)
Hotels and motels. Shall provide seven-tenths of a space for each guest room plus ten spaces per 1,000 square feet of floor area devoted to ballrooms, meeting rooms, restaurants, lounges, and shops.
(f)
Broadcast facilities and communication facilities. Shall provide four-thousandths of one square foot of gross floor area. [Amd. Ord. 01-09 1/20/09]
(g)
Bus stations, taxi stations, and train stations. Shall provide three-thousandths square feet of gross floor area (including storage areas). [Amd. Ord. 01-09 1/20/09]
(h)
Child care and adult day care. Shall provide 1/300 of one square foot of gross floor area. [Amd. Ord. 01-09 1/20/09]
(i)
Courts, courthouses and related facilities. Shall provide 1/150 of one square foot (net) of courtroom space plus 1/250 of one square foot (gross) of non-courtroom area, excluding walls, elevators, stairwells, and mechanical equipment areas.
(j)
Funeral homes. Shall provide four-thousandths of one square foot of gross floor area plus three-tenths/each seat in the chapel, if any. [Amd. Ord. 01-09 1/20/09]
(k)
Marinas. Shall provide five-thousandths of one square foot of gross floor area of any building devoted to marina use plus one/slip. [Amd. Ord. 01-09 1/20/09]
(l)
Community residences. Shall provide off-street parking for the greater of (a) the number of off-street spaces required under this code for the type of dwelling unit (single family, duplex, multi-family, etc.) in which the community residence is located, or (b) one-half off-street space for each staff member on a shift and/or live-in basis plus, when residents are allowed to maintain a motor vehicle on premises, the maximum number of occupants that is permissible under this land development regulation and the city's building and property maintenance codes. Off-street spaces may be provided on the premises or at an off-site location other than a street or alley. [Amd. Ord. 02-10 1/19/10] (Ord. No. 25-17, § 35, 7-18-17)
(m)
Urban farm sites. Shall provide one space for every two acres or portion thereof of outdoor production area and two spaces for every 1,000 square feet or portion thereof of gross floor area of buildings used for the Urban Agriculture site (excluding sheds and other utility structures used only to house equipment and/or supplies.) (Ord. No. 07-17, § 16, 5-16-17)
(8)
Multiple uses.
(a)
Shared parking. When a building or combination of buildings on a unified site or sites contains a mix of uses as categorized in the table below, the minimum total number of required parking spaces shall be determined by the following method: [Amd. Ord. 35-09 8/4/09]; [Amd. Ord. 33-06 12/5/06]; [Amd. Ord. 28-99 8/17/99]
Multiply the required parking spaces for each individual use by the appropriate percentage listed in the table below for each of the designated time periods. Add the resulting minimum required spaces in each of the five vertical columns for the table. The minimum total parking requirement is the highest sum of the vertical columns. [Amd. Ord. 28-99 8/17/99]
Shared Parking Calculations Table
Use for multiple use projects
For mixed use developments utilizing the shared parking calculations table, which contain both residential and non-residential uses, a minimum of one parking space shall be reserved for each residential unit. These reserved spaces, or any spaces reserved for other uses, must be included in the "other" category and applied as 100 percent utilization. Furthermore, subsequent to the issuance of a Certificate of Occupancy (CO), the reservation of additional parking spaces will require a site plan modification and be subject to the provision of the minimum parking requirements. [Amd. Ord. 3-06 1/17/06]
(b)
Differing hours of operation. When uses within a structure or a development have separate hours of operation (e.g. 9:00 a.m. to 5:00 p.m. and 6:00 p.m. to 10:00 p.m.) administrative relief may be granted to allow double counting of parking spaces.
(c)
Subordinate uses. When parking spaces are provided based upon an intensive use of a site (e.g. church services) and, at different times, other uses are on the site (e.g. day care) administrative relief may be granted to the effect of not requiring parking for the subordinate uses.
(D)
Design standards. All parking spaces which are created in order to fulfill requirements of this Section (i.e. required parking spaces) shall conform to the design standards of this subsection.
(1)
General design concepts. The following concepts shall be applied in the layout and design of parking lots:
(a)
Parking spaces should be located and arranged in such a manner as to facilitate pedestrian access to the uses they are intended to serve. In general, parking spaces should be distributed proportionately to needs.
(b)
Employee parking should be located in the area least desirable for customer or short-term parking.
(c)
Compact car parking, where allowed, should be integrated throughout a parking lot in such a manner that compact and standard cars have equal access to desirable parking spaces.
(d)
Handicapped spaces are to be provided in accordance with the Florida Accessibility Code for Building Construction and shall be located as close as is practical to the entrances of the buildings they are intended to serve. To the greatest extent possible, they shall be oriented so that a user does not have to go past the rear of other parking spaces or cross an aisle in order to reach the building's main entrance. [Amd. Ord. 46-96 11/5/96]
(e)
Single level mechanical parking lifts ("Lifts"), if utilized, shall be integrated into an existing or proposed building for the uses they serve and enclosed with three walls and a roof. A maximum of 50 percent of the required parking within a non-residential or the non-residential portion of a multi-use development may utilize Lifts. [Amd. Ord. 34-07 9/18/07]
(f)
Underground parking, if utilized, is not subject to setback requirements, except for any portion of the structure located above grade. (Ord. No. 10-20, § 4, 9-22-20)
(g)
Developments that include underground parking shall meet the requirements of Section 7.1.8, Construction Parking and Staging. (Ord. No. 10-20, § 4, 9-22-20)
(2)
Provisions for ingress and egress. Each required parking space shall be accessible at all times. Access which conforms with minimal aisle standards and which includes maneuvering area so that a vehicle must be able to enter and exit the parking area onto a street or alley in a forward manner shall be provided, except in the following situations. [Amd. Ord. 46-96 11/5/96]
(a)
When the land use is a single family detached dwelling, a townhouse (fee simple ownership), or a duplex;
(b)
When the parking is adjacent to an alley and the parking space and alley have a combined minimum depth of 42 feet and a minimum width of ten feet and the location of parked vehicles does not impair sight distance of pedestrians or vehicles utilizing the alley; [Amd. Ord. 46-96 11/5/96]
(c)
When the street is a private street within a planned development and the street, at the location of the parking, has less than 200 ADT.
(3)
Point of access to the street system. (Ord. No. 11-20, § 3, 12-8-20) [11]
(a)
Maximum width. The point of access to a street or alley shall be a maximum of 24 feet unless a greater width is specifically approved as a part of site and development plan approval. However, in no event shall such point of access be greater than 36 feet. (Ord. No. 11-20, § 3, 12-8-20)
(b)
Minimum width. The point of access to a street or alley shall not be less than: (Ord. No. 11-20, § 3, 12-8-20; Ord. No. 60-20, § 2, 12-8-20)
(1)
24 feet for a normal two-way private street or parking lot driveway aisle. (Ord. No. 11-20, § 3, 12-8-20; Ord. No. 60-20, § 2, 12-8-20)
(2)
20 feet for a private driveway which has less than 200 ADT. (Ord. No. 11-20, § 3, 12-8-20; Ord. No. 60-20, § 2, 12-8-20)
(3)
12 feet for a one-way driveway or parking lot aisle. (Ord. No. 11-20, § 3, 12-8-20; Ord. No. 60-20, § 2, 12-8-20)
(c)
Stacking distance. Provisions must be made for stacking and transition of incoming vehicular traffic from a public street into a private property to maintain a clear and safe path for vehicles, bicyclists, and pedestrians. Vehicles shall not queue into or obstruct the public right-of-way, nor planned or existing public infrastructure in the ultimate right-of-way, per Always Delray Table MBL-1, Street Network Classification and Improvements. (Ord. No. 11-20, § 3, 12-8-20)
1.
The minimum distance between a right-of-way and the first parking space or aisleway in a parking lot not controlled by access gates shall be as outlined in Table 4.6.9(D)-1: (Ord. No. 11-20, § 3, 12-8-20)
(Ord. No. 11-20, § 3, 12-8-20)
2.
The minimum stacking distance may be reduced to a minimum of 20 feet for parking lots containing more than 50 parking spaces when the parking lot is designed and operated with two or more access points. This reduction in stacking distance is subject to approval by the City Engineer based on the following: (Ord. No. 11-20, § 3, 12-8-20)
a.
The primary access point to the parking lot is not located along a collector or arterial street; and (Ord. No. 11-20, § 3, 12-8-20)
b.
A Traffic Statement or Study identifies that the site will generate no more than 200 ADT; or (Ord. No. 11-20, § 3, 12-8-20)
c.
A dedicated right turn lane measuring at least 50 feet in length from the primary access point is located along a collector or arterial street. (Ord. No. 11-20, § 3, 12-8-20)
3.
Drive-thru facilities must provide a minimum of 100 feet of stacking distance from the first point of transaction for each lane. (Ord. No. 11-20, § 3, 12-8-20)
(4)
A stacking area in advance of access gates, guardhouses, and other barriers shall be provided as follows: (Ord. No. 11-20, § 3, 12-8-20)
a.
Single-Family dwelling units, duplexes and townhomes with direct, individual unit access to a public right-of-way shall provide: (Ord. No. 11-20, § 3, 12-8-20)
i.
Along all road classifications, except local, a minimum stacking distance of 20 feet from the ultimate right-of-way (See Figure 4.6.9(D)4-1). (Ord. No. 11-20, § 3, 12-8-20)
ii.
Along local roads, gates, wall, fences, or similar structures, that are 25 percent or less opaque and do not create visual obstructions, are permitted on the ultimate right-of-way line or on the property line without a stacking distance, whichever distance is greater, and are not subject to the regulations in Section 4.6.14 (See Figure 4.6.9(D)4-2). (Ord. No. 11-20, § 3, 12-8-20)
b.
Planned residential developments, whether single or multi-family, and all other uses and access configurations not listed above, shall provide: (Ord. No. 11-20, § 3, 12-8-20)
i.
A minimum stacking distance of 100 feet from the property line or ultimate right-of-way, whichever is greater (See Figure 4.6.9(D)4-3). (Ord. No. 11-20, § 3, 12-8-20)
ii.
For commercial uses, a minimum stacking distance of 20 feet from the ultimate right-of-way, if the access gate or barrier remains open at all times during business hours (See Figure 4.6.9(D)4-4). (Ord. No. 11-20, § 3, 12-8-20)
c.
Gates, walls, fences or similar structures that are more than 25 percent opaque must comply with the sight visibility requirements in Section 4.6.14 and regulations governing walls, fences, and hedges in Section 4.6.5. (Ord. No. 11-20, § 3, 12-8-20)
(5)
Additional stacking distance may be required to improve site access and public safety. A reduction to the minimum required stacking distance may be requested when supported by a traffic study and justification statement addressing access into the site and efforts to diminish the impact of queuing on the public right-of-way. The City Engineer shall provide a written determination regarding the request to reduce the stacking distance. A denial to reduce the minimum stacking distance requirement may be appealed to the City Commission and processed as a waiver request. (Ord. No. 11-20, § 3, 12-8-20)
(6)
Maneuvering area, aisle width, space width. (Ord. No. 11-20, § 3, 12-8-20)
(a)
The standard parking space is nine feet in width and 18 feet in length in a perpendicular configuration. Parallel parking spaces shall be eight feet in width and 22 feet in length. Parking space dimensions for other types of spaces are: [Amd. Ord. 46-96 11/5/96] (Ord. No. 60-20, § 2, 12-8-20)
(1)
Compact Car Spaces at eight feet x 16 feet. (Ord. No. 11-20, § 3, 12-8-20; Ord. No. 60-20, § 2, 12-8-20)
(2)
Handicapped Spaces at 12 feet x 18 feet. (Ord. No. 60-20, § 2, 12-8-20)
(3)
Diagonal Spaces per Subsection (4)(e). (Ord. No. 60-20, § 2, 12-8-20)
(b)
Wheel Stops shall be provided for all parking, other than parallel, in the form of concrete or asphalt wheel stops or a continuous concrete curb which is located so that there is two feet of clear distance from the front edge of the device to the front of the parking space. Treated wood, stones, or similar landscape features may be allowed upon approval through the site plan review process. The requirement for wheel stops may be waived through the site plan review process when the parking spaces are on stabilized sod. [Amd. Ord. 46-96 11/5/96]
(c)
Dead-end Parking Bays are discouraged, but when site conditions dictate that there be dead-end parking bays, they shall be designed so that there is a 24 feet wide by six feet deep maneuvering area at the end of the bay. This maneuvering area shall not encroach upon required landscape areas. [Amd. Ord. 46-96 11/5/96]
(d)
The standard aisle width is 24 feet for normal traffic flow with perpendicular parking. The maximum aisle width is 26 feet. Exceptions may be made at the time of site plan approval in order to accommodate pickup or drop-off areas. The width of aisles associated with diagonal parking is per Subsection (4)(e). Two-way traffic flow must be used when perpendicular parking spaces are used. The minimum aisle width for two-way traffic flow is twenty feet but this dimension can only be used for short distances where there are no parking spaces entering therein.
(e)
Alternative Parking Lot Designs: Parking lot designs which incorporate one-way aisles, two-way aisles, and diagonal parking may be used in lieu of the standard (perpendicular, two-way aisle) parking lot design. Diagrams depicting these designs are provided below. [Amd. Ord. 46-96 11/5/96]
(7)
Landscaping requirements. All parking lots shall be landscaped in accordance with the provisions of Section 4.6.16. (Ord. No. 11-20, § 3, 12-8-20)
(8)
Marking and signage.[12] Parking spaces required to be striped shall comply with the Minimum Construction Standards and Specifications document developed by the City Engineer and Figure 4.6.9(D)(6)-1, Typical Parking Space Detail RT 4.2, as further identified: (Ord. No. 60-20, § 2, 12-8-20)
(a)
All parking stalls, with the exception of stabilized sod parking, shall be clearly demarcated as follows: [Amd. Ord. 46-96 11/5/96] (Ord. No. 60-20, § 2, 12-8-20)
1.
Parallel parking stalls shall use a single line surface striping. (Ord. No. 60-20, § 2, 12-8-20)
2.
Diagonal, perpendicular, and other parking stalls shall use a double line surface striping. (Ord. No. 60-20, § 2, 12-8-20)
3.
Handicapped spaces shall be striped and marked as shown in Figure 4.6.9(D)(6)-1, Typical Parking Space Detail RT 4.2, and in accordance with the Florida Accessibility Code for Building Construction. Each handicapped space shall have a sign at the head of the stall reserving it for handicapped parking only. (Ord. No. 60-20, § 2, 12-8-20)
(b)
Parking spaces intended for operational uses, such as curbside pick-up and drop-off, or to reserve or limit the use of parking spaces, other than handicapped spaces, are subject to the following: (Ord. No. 60-20, § 2, 12-8-20)
1.
A maximum of five percent of the total number of required spaces, or one space, whichever is greater, may be designated for operational uses. (Ord. No. 60-20, § 2, 12-8-20)
2.
Signs are limited to a maximum of four square feet and six feet in height. Signs shall be mounted to a wall or a fixed pole located in front or to the side of the space. (Ord. No. 60-20, § 2, 12-8-20)
3.
Markings on the parking space surface are discouraged. When necessary, such markings shall only include references to the space designation without business logos or symbols and are limited to a maximum of 25 percent of the total parking space area. (Ord. No. 60-20, § 2, 12-8-20)
(c)
Drive aisles, approach lanes, and maneuvering areas within parking lots and facilities containing more than 20 parking spaces shall include directional arrows and lines as approved by the City Engineer. The City Engineer may require additional signage to insure the smooth and safe flow of traffic. (Ord. No. 60-20, § 2, 12-8-20)
(d)
All signs and markings shall comply with the design criteria as set forth in the M.U.T.C.D. (Manual of Uniform Traffic Control Devices), except that the City Engineer, or his designee, may waive such compliance on a case-by-case basis. Any decision by the City Engineer or his designee may be appealed pursuant to Section 2.4.7 of the Land Development Regulations of the Code of Ordinances of the City of Delray Beach, Florida. (Ord. No. 60-20, § 2, 12-8-20)
(e)
Parking spaces required to be striped shall comply with the Minimum Construction Standards and Specifications document developed by the City Engineer and Figure 4.6.9(D)(6)-1, Typical Parking Space Detail RT 4.2. (Ord. No. 60-20, § 2, 12-8-20)
Figure 4.6.9(D)(6)-1, Typical Parking Space Detail RT 4.2
(Ord. No. 60-20, § 2, 12-8-20)
(9)
Compact car parking areas. Compact car parking areas, where permitted, shall be clearly marked with markings as follows: [See Subsection (1)(g) as to approval for use of Compact Car Spaces]. [Amd. Ord. 46-96 11/5/96] (Ord. No. 11-20, § 3, 12-8-20)
(a)
All compact spaces shall have "compact car only" painted on the required wheel stops. [Amd. Ord. 46-96 11/5/96]
(b)
Alternate signage for compact car parking may be approved by the Chief Building Official when comparable to the standards set forth above. [Amd. Ord. 46-96 11/5/96]
(10)
Parking surfaces and drainage. (Ord. No. 11-20, § 3, 12-8-20)
(a)
All parking lots and parking spaces, including car storage and display areas, shall be improved either with a paved surface meeting Engineering Department standards, or with a hard surface material (such as brick or turf block on a base course laid in accordance with approved manufacturer's recommendations), or with some other type of surface material acceptable to the City Engineer. Parking lots and parking spaces on historic sites or within historic districts may be improved with a surface material other than pavement, where there are 12 or less parking spaces, subject to approval by the Historic Preservation Board.
(b)
A surface of sod over stabilized base shall be acceptable for required guest parking in multiple-family projects, as well as for parking used on a once-a-week or occasional basis. Parking lots and spaces proposed to be constructed of stabilized sod may be allowed through the site plan approval process. [Amd. Ord. 46-96 11/5/96]
(c)
In paved parking lots, that portion of the parking space extending beyond the car stop may be sodded. When this option is selected, a continuous curb at least six inches in height may be substituted for the wheel stops.
(d)
Handicapped parking spaces shall be paved and properly marked. A paved route shall be provided between the handicapped parking space and the building entrance. Where an abrupt grade change occurs, as between the surface of the parking area and a curb cut, a ramp shall be provided for handicap access. The ramp or curb cut with ramp shall be designed in accordance with the Florida Accessibility Code for Building Construction. [Amd. Ord. 46-96 11/5/96]
(e)
The City Engineer shall approve the drainage and grading plans for parking spaces and parking lots. He shall also conduct inspections during and after construction of the parking area and its drainage system to ensure that it is constructed in accordance with the approved paving and drainage construction plans.
(f)
Parking lots, parking spaces and driveways that exist at the time of adoption of this ordinance that are not in compliance with Section 4.6.9(D)(8) shall be required to come into compliance with this section within 3 years of the adoption of this ordinance. This includes, but is not limited to, all duplexes, multi-family, and commercial property, but excludes single family homes. [Amd. Ord. 29-01 5/15/01]
(11)
Lighting. Lighting of parking lots shall be pursuant to Section 4.6.8(B). (Ord. No. 11-20, § 3, 12-8-20)
(12)
Operations and maintenance. (Ord. No. 11-20, § 3, 12-8-20)
(a)
All required parking facilities shall be maintained for the duration of the use requiring such facilities. Such facilities shall be used exclusively for the parking of vehicles. With the exception of vehicle rental or sales, parking facilities shall not be used for the storage or sale of merchandise, nor shall they be used for the storage or repair of vehicles or equipment. Parking facilities may be used for the sale of merchandise on a temporary basis for special events when approved in accordance with the provisions of Subsection (F)(2).
(b)
It shall be the responsibility of the owner or operator of a specific use to ensure that the parking facilities are kept in good operating condition and that the parking facilities are periodically swept and cleaned. All parking lots and spaces shall be maintained so as not to create a hazard, eyesore, or nuisance. This includes, but is not limited to, removing glass and litter; pruning, nourishing, and watering vegetation; resurfacing and restriping surface markings; reanchoring or replacing loose and broken wheel stops; and replacing or painting signs.
(13)
Mechanical parking lifts. (Ord. No. 11-20, § 3, 12-8-20)
(a)
Single level mechanical parking lifts ("Lifts") shall be integrated into a structure for the uses they serve, constructed with at least three walls and a roof, in accordance with Section 4.4.13(F)(8), to provide adequate screening and containment of sound from operation of the lifts for the benefit of adjacent land uses. [Amd. Ord. 28-15 12/08/15]
(b)
Lifts may be utilized to provide up to but not more than 50 percent of the required non-residential parking for commercial or mixed-use developments.
(c)
Lifts and the spaces below them must be operated by an attendant during all hours of operation. Upon closing, the parking attendant shall remove all vehicles from atop and beneath the Lifts and park them in an area where the customer may retrieve their vehicle. At no time shall the general public be permitted to operate the Lifts.
(d)
On-site staging spaces must be provided for the maneuvering of vehicles to facilitate the parking and retrieval of vehicles. At no time shall vehicles be staged within the adjacent public right-of-way. A minimum of two staging spaces shall be provided for the first 20 Lifts or less. One additional staging space shall be provided for every 20 additional Lifts or part thereof.
(e)
Lifts must be manufactured with a full bottom panel to contain fluids which may be emitted from vehicles while parked (oil, condensation from air conditioners, etc.) No wheel or chassis lift mechanisms (historically used at service stations) are permitted.
(f)
The balance of the required non-residential spaces shall be provided as "self-park" spaces.
(g)
For each lift provided, a minimum of 75 square feet of landscaped area over and above the minimum required by code must be provided and shall be located to provide a view corridor for the general public. Lots of record having a width less than 50 feet shall be exempt from the requirement of this additional landscape/open space;
(h)
The Lifts shall be regularly and routinely maintained to ensure safety and dependability of operation and minimization of operational noise levels. Maximum sound levels shall not exceed applicable thresholds as stipulated in Chapter 99 of the City Code of Ordinances.
(14)
Bicycle Parking Typology. A bicycle space is a permanently affixed bicycle rack for the purpose of parking a bicycle. The City of Delray Beach requires two distinct types of bicycle parking to meet the needs of different types of people who use a bicycle. All bicycle racks must be installed using the manufacturer's standard detail. (Ord. No. 29-20, § 3, 11-10-20)
(a)
Type I Bicycle Parking. A Type I Bicycle Parking space is a convenient bicycle space visible and publicly accessible from the street. Type I Bicycle Parking is used for a short period of time, approximately four hours. A Type I Bicycle Rack accommodates two spaces for the purposes of meeting the minimum number of required bicycle parking spaces. Type I Bicycle Racks placed on private property to meet the minimum requirements for off-street bicycle parking shall follow the form identified as a Typical Type I Bicycle Rack in Figure 4.6.9(D)-1 unless a variation is approved through the Site Plan approval process. Variations from a Typical Type I Bicycle Rack may be approved if the rack meets all of the following requirements: (Ord. No. 29-20, § 3, 11-10-20)
i.
Supports bicycle by making two points of contact with the bicycle, preventing it from falling over; (Ord. No. 29-20, § 3, 11-10-20)
ii.
Allows locking of the frame and one or both wheels with a u-lock; (Ord. No. 29-20, § 3, 11-10-20)
iii.
Allows two bicycles to be parked per rack. (Ord. No. 29-20, § 3, 11-10-20)
(b)
Up to 50 percent of the required Type I bicycle parking may be located within a public right-of-way if the approving body with support from the City Engineer and the Development Services Director determines that existing conditions, such as the existing building location or configuration, limit bicycle parking from being located on site. Bicycle parking placed within the public right-of-way must meet the City Standard and a maintenance agreement must be provided in a form acceptable to the City Attorney. (Ord. No. 29-20, § 3, 11-10-20)
(c)
If an improved alley or loading area is present or will be improved at time of development, up to 20 percent of Type I bicycle parking may be placed adjacent to such an area. (Ord. No. 29-20, § 3, 11-10-20)
(d)
Bicycle racks shall not interfere with the sight visibility requirements of Land Development Regulation 4.6.14 (B). Placement of racks shall also not be placed in sight visibility triangles of County, State, or Federal rights-of-way as required by 4.6.14 (B) (5). (Ord. No. 29-20, § 3, 11-10-20)
(e)
Type II Bicycle Parking. A Type II Bicycle Parking space is an access restricted space providing for the long-term storage of bicycles, typically greater than four hours or overnight. Types of Type II bicycle parking include bicycle lockers or an enclosed, secure room. Generally, bike rooms are adjacent to showers, if required. (Ord. No. 29-20, § 3, 11-10-20)
(f)
If required, showers and Type II bicycle parking shall be co-located in a building and provided in a safe, access restricted area or otherwise not accessible to the public at large. Design shall consider crime prevention as a part of design. Specifications for these facilities shall be included within the site plan. (Ord. No. 29-20, § 3, 11-10-20)
(E)
Location of parking spaces. Required off-street parking shall generally be provided on the same lot or parcel as the building and uses for which it is required. (Ord. No. 14-24, § 5, 12-10-24)
(1)
Street parking, parking located in the public right-of-way, or parking located in public parking facilities shall not be used to satisfy on-site parking requirements, except as provided for herein. The terms "on-site parking" and "off-street parking" are synonymous. [Amd. Ord. 58-06 10/17/06; Amd. Ord. 74-04 1/18/05; Amd. 53-02 1/7/03; Amd. Ord. 4-99 2/2/99] (Ord. No. 14-24, § 5, 12-10-24)
(2)
Construction of new on-street public parking spaces directly and wholly abutting the lot, or parcel, shall be credited towards the off-street parking requirement of the lot or parcel it is intended to serve on a one-to-one basis, provided: (Ord. No. 14-24, § 5, 12-10-24)
(a)
The parking spaces are identified on the site plan and designed in accordance with applicable City, County or State standards. (Ord. No. 14-24, § 5, 12-10-24)
(b)
The parking spaces shall be publicly accessible and cannot be reserved or restricted by the owner(s) or tenant(s) of the lot or parcel, unless approved by the City Commission for special events or valet parking. (Ord. No. 14-24, § 5, 12-10-24)
(c)
The parking spaces shall not extend past a side property line of the lot it serves. (Ord. No. 14-24, § 5, 12-10-24)
(d)
Parking spaces located on the opposite side of the right-of-way, and within the property lines, as extended to the opposite side of the right-of-way, may be counted toward fulfilling the off-street parking requirement when the adjacent lot is a railroad or waterway, and does not warrant parking. (Ord. No. 14-24, § 5, 12-10-24)
(e)
In the event the City, County, or State removes the parking spaces at any time for a public purpose, the property shall be considered legally nonconforming with respect to parking. (Ord. No. 14-24, § 5, 12-10-24)
(3)
Off-site parking. In instances where uses do not have sufficient space to accommodate customer and employee parking demands on-site, required parking may be provided off-site in accordance with the following: [Amd. Ord. 79-05 1/3/06; Amd. Ord. 46-96 11/5/96] (Ord. No. 14-24, § 5, 12-10-24)
(a)
Normal operations. Parking for day-to-day operation may be provided on other property within 300 feet provided that both properties are of the same general type of zone designation (i.e. commercial, industrial, office, etc.) or when the off-site parking site is zoned CF and a conditional use approval for use as a parking lot has been approved, and when in compliance with, and pursuant to, the following: (Ord. No. 14-24, § 5, 12-10-24)
1.
The 300-foot distance shall be measured along an acceptable pedestrian route; [Amd. Ord. 46-96 11/5/96] (Ord. No. 14-24, § 5, 12-10-24)
2.
Approval of such off-site parking may be granted by the body which has approval authority of the related site and development plan; [Amd. Ord. 46-96 11/5/96] (Ord. No. 14-24, § 5, 12-10-24)
3.
An agreement providing an easement for such use is prepared pursuant to Subsection (E)(3)(c) and is recorded prior to certification of the site and development plan; [Amd. Ord. 46-96 11/5/96] [Amd. Ord. 42-92 9/8/92] (Ord. No. 14-24, § 5, 12-10-24)
4.
The provision of the parking easement shall not diminish the ability of the property upon which it is placed, to accommodate its required parking. [Amd. Ord. 46-96 11/5/96] (Ord. No. 14-24, § 5, 12-10-24)
(b)
Special events/facilities. In instances where uses and/or facilities have large parking demands/requirements and are otherwise subject to conditional use approval (e.g. stadiums, places of assembly, community and civic centers, recreational areas, etc.), such parking may be provided off-site in accordance with the following: (Ord. No. 14-24, § 5, 12-10-24)
1.
Off-site parking may be granted by the body with approval authority of the related conditional use. [Amd. Ord. 46-96 11/5/96] (Ord. No. 14-24, § 5, 12-10-24)
2.
A parking and transportation plan must be provided that identifies parking areas and demonstrates the manner in which transportation to the site, security, maintenance, and related matters will be accommodated. [Amd. Ord. 46-96 11/5/96] (Ord. No. 14-24, § 5, 12-10-24)
3.
Easements, agreements, or other appropriate legal documents assuring continued availability of such parking shall be required as a part of the parking and transportation plan. [Amd. Ord. 46-96 11/5/96] [Amd. Ord. 42-92 9/8/92] (Ord. No. 14-24, § 5, 12-10-24)
(c)
Off-site parking agreement. The owner of the alternate off-street parking area and the owner of the principal use or building (including the land on which it is situated), shall enter into a written agreement with the City (in such form as may be approved by the City Attorney), providing that the alternate off-street parking area shall never be disposed of except in conjunction with the transfer or sale of the building that the parking area is intended to serve, so long as the parking facilities are required. The agreement shall constitute a covenant running with the land binding upon the owners, heirs, administrators, successors, and assigns, and shall be enforceable by the City. The agreement shall be recorded by the City Clerk, with the owner of the principal use or building bearing the costs of recordation. The agreement shall be released by the Commission at such time as the alternate off-street parking facilities are no longer required or when the owner provides other lawful off-street parking facilities. The owner of the principal use or building shall bear the expense of recording the release of the agreement. [Amd. Ord. 79-05 1/3/06] (Ord. No. 14-24, § 5, 12-10-24)
(4)
Location and Spacing Requirements for Bicycle Parking. Bicycle parking shall be placed in a manner to avoid conflicts between vehicles, buildings, and pedestrian clear zones or sidewalks. Bicycles are considered for site planning purposes to be six feet long by two feet wide. (Ord. No. 29-20, § 3, 11-10-20; Ord. No. 14-24, § 5, 12-10-24)
(a)
Type I. Type I bicycle parking facilities shall be visible to the intended users within a location shown on the site plan that meets the following standards: (Ord. No. 29-20, § 3, 11-10-20)
1.
All bicycle parking shall be provided in a safe, accessible and convenient location within 100 feet of a primary building entrance; when there is more than one primary building entrance or multiple buildings on a site, bicycle parking shall be distributed to serve all main entrances. The acting body may approve bicycle parking spaces located further than 100 feet from the primary building entrance if the applicant demonstrates this requirement is not feasible and does not create an unsafe condition or permit a special privilege. (Ord. No. 29-20, § 3, 11-10-20)
2.
Bicycle parking shall not be placed on walkways or other pedestrian paths. (Ord. No. 29-20, § 3, 11-10-20)
(b)
Type I Bicycle Rack Placement in Site Design. All bicycle racks shall meet the minimum distances for placement according to the City Standards published by the Public Works Department on a Site Plan. (Ord. No. 29-20, § 3, 11-10-20)
(c)
Bicycle racks placed at bus shelters shall use City of Delray Beach Standard Bicycle Rack. (Ord. No. 29-20, § 3, 11-10-20)
(d)
Unless otherwise provided by law, residential condominium covenants are encouraged not to prohibit the storage of bicycles inside individual dwelling units. (Ord. No. 29-20, § 3, 11-10-20)
(F)
Special provisions.
(1)
Reduction allowed. When, upon receipt and acceptance of special documentation, it is conclusively demonstrated that a reduced number of parking spaces will accommodate a specific use, the body which acts on the attendant site plan may reduce the parking requirements accordingly. [Amd. Ord. 46-96 11/5/96]
(2)
Temporary use of parking spaces for other purposes. Parking lots may be used for the sale of merchandise on a temporary basis for special events. Request for such approval shall be governed by Section 2.4.6(H).
(3)
Valet parking. A parking facility with a valet service or operator which allows for attendants to receive, park and deliver the automobiles of occupants, tenants, customers, invitees, and visitors, including tandem parking may be utilized in lieu of the requirements of this Section provided the following requirements are complied with: [Amd. Ord. 37-01 7/10/01]
(a)
Any required valet or tandem parking utilized in lieu of the parking requirements set forth in this section shall be governed by an agreement with the City (in such form as may be approved by the City Attorney), and recorded in the public records of Palm Beach County. The agreement shall constitute a covenant running with the land binding upon the owners, heirs, administrators, successors, and assigns. The agreement may be released by the City Commission at such time that site plan approval is obtained for an alternative parking arrangement which satisfies the parking requirements for said use. [Amd. Ord. 37-01 7/10/01]
(b)
The required queue is to be provided on private property as opposed to public rights-of-way. [Amd. Ord. 37-01 7/10/01]
(c)
There is a parking professional available for the vehicle retrieval during business hours. [Amd. Ord. 37-01 7/10/01]
(d)
The dimensions for valet and tandem parking spaces shall be a minimum of eight and one-half feet wide and 16 feet deep with a maximum stacking of two vehicles along with a drive aisle of 24 feet. [Amd. Ord. 37-01 7/10/01]
(e)
Valet parking may be utilized to conform with the number of handicap accessible parking spaces provided that: [Amd. Ord. 37-01 7/10/01]
(i)
At least two handicapped accessible spaces are provided adjacent to the vehicle queuing area for those vehicles which cannot be operated by the parking professional; and, [Amd. Ord. 37-01 7/10/01]
(ii)
The disabled person's vehicle may be safely operated by aforementioned parking professional. [Amd. Ord. 37-01 7/10/01]
(f)
Valet drop-off/queuing area must be provided with a minimum length of 100 feet. Greater queuing area may be required as a condition of site plan or conditional use approval based upon the intensity of the use. The length of the queuing area may be reduced when supported by a traffic study.
(g)
Interior landscape areas required by Section 4.6.16 shall not be required if landscape requirements which would otherwise have been installed on the interior of the parking lot are evenly distributed along the perimeter of the parking area or facility and subject to the following requirements: [Amd. Ord. 37-01 7/10/01]
(i)
That a ten feet perimeter landscape buffer consisting of a hedge and trees 30-feet on center be provided. [Amd. Ord. 37-01 7/10/01]
(4)
Mechanical parking lifts. [Section Added by Ord. 34-07 9/18/07]
(a)
Any mechanical lift parking utilized to meet parking requirements set forth in sections 4.4.13 and 4.6.9 shall be governed by an agreement with the City (in such form as may be approved by the City Attorney), and recorded in the public records of Palm Beach County. The agreement shall constitute a covenant running with the land, binding upon the owners, heirs, administrators, successors, and assigns. The agreement may be released by the City Commission at such time that site plan approval is obtained for an alternative parking arrangement which satisfies the parking requirements for said use.
(G)
In-Lieu of Parking Fee. (Ord. No. 14-24, § 5, 12-10-24)
(1)
Purpose. The in-lieu of parking fee is an incentive to promote historic preservation, to maintain the moderate scale of the downtown, and to encourage revitalization and adaptive reuse by providing an alternative method to meet off-street parking requirements. (Ord. No. 14-24, § 5, 12-10-24)
(2)
Eligible Requests. The in-lieu of parking fee is available in the following areas, subject to limitations and exceptions in Subsection (3) below. (Ord. No. 14-24, § 5, 12-10-24)
(a)
Central Business (CBD) District Zoning District. (Ord. No. 14-24, § 5, 12-10-24)
1.
Within the West Atlantic Neighborhood Sub-district (Figure 4.4.13-B-2. Regulating Plan). (Ord. No. 14-24, § 5, 12-10-24)
2.
Within the Railroad Corridor Sub-district (Figure 4.4.13-B-3), except for the area located both south of SE 2 nd Street and west of the FEC Railway. (Ord. No. 14-24, § 5, 12-10-24)
3.
Within the Central Core Sub-district in the area located south of NE 4 th Street, north of SE 2 nd Street, and west of NE and SE 6 th Avenue, as well as the properties designated with Required Retail Frontage located east of 6 th Avenue. (Ord. No. 14-24, § 5, 12-10-24)
(b)
Historic Sites and Districts. Individually designated properties or structures, contributing structures, or non-contributing structures at least 35 years in age located within a historic district with Central Business (CBD) District or Old School Square Historic Arts District (OSSHAD) zoning. (Ord. No. 14-24, § 5, 12-10-24)
(3)
Limitations and exceptions. In-lieu of parking fees may be approved subject to the findings in Section 2.4.11(F) with the following limitations and exceptions: (Ord. No. 14-24, § 5, 12-10-24)
(a)
Required parking for residential development or residential components of mixed-use developments, including required guest parking, is not eligible for the in-lieu of parking fee option. (Ord. No. 14-24, § 5, 12-10-24)
(b)
All nonresidential parking required due to a change in commercial use of a building existing as of December 10, 2024, or associated outdoor use area, can be provided by in-lieu of parking fees. (Ord. No. 14-24, § 5, 12-10-24)
(c)
Non-historic properties. A maximum of 30 percent of nonresidential required parking can be provided by in-lieu of parking fees for additions and/or new development resulting in a building not more than a total of two stories in height or for the expansion of outdoor use areas. (Ord. No. 14-24, § 5, 12-10-24)
(d)
Historic sites and districts. As defined in Subsection (G)(2)(b) above, all nonresidential required parking can be provided by in-lieu of parking fees for use conversions, expansion of outdoor use areas, and additions resulting in buildings that are not more than a total of two stories in height. (Ord. No. 14-24, § 5, 12-10-24)
(e)
Where adequate right-of-way, as determined by the City, exists adjacent to a proposed project for which an in-lieu of parking fee has been requested, the applicant must construct additional on-street parking, not to exceed the total number of spaces subject to in-lieu of parking fees. The number of on-street parking spaces provided shall offset the in-lieu of parking fee on a one-to-one basis. (Ord. No. 14-24, § 5, 12-10-24)
(4)
Approved in-lieu of parking fee requests shall credit subsequent occupants of the building with the same number of spaces toward required parking. (Ord. No. 14-24, § 5, 12-10-24)
Editor's note— Ord. No. 29-20, § 3, adopted November 10, 2020, repealed and replaced subsection 4.6.9(C)(1)(c) which pertained to similar subject matter and derived from Ord. 46-96, adopted November 5, 1996 and Ord. 03-15, adopted February 24, 2015.
Editor's note— Ord. No. 11-20, § 3, adopted December 8, 2020, repealed and replaced subsection 4.6.9(D)(3), which pertained to similar subject matter and derived from Ord. 22-92, adopted June 16, 1992; Ord. 46-96, adopted November 5, 1996; and Ord. 12-13, adopted August 20, 2013.
Editor's note— Ord. No. 60-20, § 2, adopted December 8, 2020, in effect repealed subsection 4.6.9(D)(8) and enacted a new subsection 4.6.9(D)(8) as set out herein and later amended. Former subsection 4.6.9(D)(8) pertained to similar subject matter and derived from Ord. 19-91, adopted April 9, 1991; Ord. 46-96, adopted November 5, 1996; and Ord. No. 11-20, adopted December 8-20
(A)
Rule. Space for accommodating the unloading of merchandise, inventory, materials, supplies, and produce shall be provided on the site where a use which requires such items is located. Provisions for such (un)loading areas shall be shown on the site and development plan under which the site is to be developed.
(B)
Determination of adequacy. The body approving the site plan associated with the proposed development shall determine the adequacy of the provisions which are made for (un)loading. In making such a determination, the standards and guidelines of this Section shall be considered. The final determination may result in accommodations in excess of or less than such guidelines, or in the waiving of any such accommodations.
(C)
Guidelines. The following table sets forth guidelines which shall be used in determining adequacy of loading accommodations. In circumstances where these guidelines are not applicable or appropriate, the applicant may provide a "loading demand statement" in which the normal demands for loading are set forth along with any restrictions which may be appropriate.
(D)
Dimensions and location.
(1)
Dimensions.
(2)
Locations. Where the entrance of a building is designed for loading and unloading operations, such entry shall provide, at least, one loading space. Otherwise loading areas shall not be located so as to create confusion or conflict with other use areas e.g. dumpster locations.
Outside storage of materials, supplies, products, vehicles, and the like shall only be as allowed for, within the requirements of each individual zoning district. Uses which are allowed out-of-doors are further identified in Section 4.6.6. All items which are stored outside of structures shall be screened.
The operation of all uses allowed herein must also fully comply with the requirements and conditions of the City's industrial and hazardous waste disposal regulations as set forth in Chapter 53 of the City Code.
(A)
Prohibitions and restrictions in residential districts.
(1)
It shall be unlawful for any agent, operator, owner, or person in charge of any bus, pole trailer, semi-trailer, trailer, trailer coach, truck, truck trailer, or industrial equipment, to park, store, or keep such motor vehicle on any public street, avenue, alley, or other thoroughfare, or any right-of-way within any residential zoning district in the city, for a period exceeding one hour in any 24-hour period. Each such period shall commence at the time of first stopping or parking, unless a permit is first obtained from the Police Department.
(2)
Unless otherwise provided for, it shall be unlawful for the owner, agent, or operator of the motor vehicles and industrial equipment set forth herein, or the owner of property in any residential zoning district in the city, to park on, or cause to be parked on, or allow to be parked on any residential property in the city, or in the streets, alleys, or parkways abutting the property, any bus, pole trailer, semi-trailer, trailer, trailer coach, truck, truck trailer, or industrial equipment, for a period exceeding one hour in any 24-hour period. Each such period shall commence at the time of first stopping or parking, unless a permit is first obtained from the Police Department, or as otherwise provided for in new references.
(3)
The restrictions of subsections (1) and (2) above shall not apply to the temporary parking of such vehicles on private property in residential zoning districts, whereon construction is underway. A current and valid building permit issued by the city must be properly displayed on the premises.
(4)
The restrictions of subsections (1) and (2) above of one hour in residential zoning districts shall not apply to routine deliveries by tradesmen, or the use of trucks in making service calls, providing such time in excess of one hour is actually in the course of business deliveries or servicing.
(5)
The restrictions of subsections (1) and (2) above shall not apply to vehicles which become disabled, and as a result of such emergency are required to be parked within a residential zoning district longer than one hour. Any disabled vehicle, however, shall be removed from the residential zoning district within 24 hours, by a wrecker if necessary, regardless of the nature of the emergency.
(B)
Permissible parking.
(1)
Trucks. Truck parking in residential zoning districts is prohibited except if all of the following restrictions are met: [Amd. Ord. 25-99 7/20/99]
(a)
Only panel, pickup, van, and similar type trucks are allowed in all residential zoning districts. [Amd. Ord. 25-99 7/20/99]
(b)
In the R-1-A district, such trucks shall not exceed one and one-half (1 ½) ton rated capacity, except in the R-1-A zoned section included within the Seacrest/Del-Ida Neighborhood Plan, where such trucks shall not exceed three-quarter-ton rated capacity. In all other residential zoning districts, such trucks shall not exceed three-quarter-ton rated capacity. [Amd. Ord. 25-99 7/20/99]
(c)
No more than two trucks may be parked on a lot improved with a residence. For the purposes of Section 4.6.13(B)(1), a lot includes the property on which the residence is located and any adjacent lot which is under the control of the owner or lessee of the residence. Parking on vacant lots is otherwise prohibited. [Amd. Ord. 25-99 7/20/99]
(d)
Only trucks as defined in this section and used by a resident of the premises are allowed. [Amd. Ord. 25-99 7/20/99]
(2)
One boat, one boat trailer, and one recreational vehicle may be parked in a garage or carport which is effectively screened on three sides, provided no portion of the boat, boat trailer, or recreational vehicle extends beyond the roof line.
(3)
One boat, one boat trailer, and one recreational vehicle may be parked in the side or rear yard provided the plot is occupied by a permitted structure. Such boat, boat trailer, or recreational vehicle shall be effectively screened against direct view from abutting properties in the following manner: by a masonry wall, ornamental fence, or dense hedge, six feet high or equal to the height of the vehicle if the vehicle is less than six feet high. If a hedge is used as the method of screening, the hedge should be three feet at the time of planting and should be of a variety which can reasonably be expected to reach the required height within two years. This regulation is not to be construed as requiring screening from direct view from the street in front of the plot.
(4)
Such boat, boat trailer, or recreational vehicle must be owned and used by a resident of the premises.
(5)
No boat or recreational vehicle which is parked in a residential district shall be occupied or used for living, sleeping, or housekeeping purposes, nor shall it be connected to any utility service.
(6)
A boat, boat trailer, or recreational vehicle may be parked only if it is currently registered as required by state or federal law, and if the transportation of the vehicle is in compliance with F.S. Chapter 317.
(7)
One boat, one boat trailer, or one recreational vehicle may be parked in the front driveway for a 24-hour period for the purpose of loading or unloading.
(8)
No boat, boat trailer, or recreational vehicle shall be parked in the area between the street and the structure.
(A)
Purpose and intent. The objective of these requirements is to provide sufficient view corridors for safe interaction of vehicles and pedestrians at intersections. Except for sight visibility areas as prescribed by the Florida Department of Transportation, sight visibility triangles are to be measured from the edge of pavement for driveways and from the ultimate right-of-way line of alleys and streets. The sight visibility areas apply to all potential visual obstructions, including, but not limited to, landscaping, signs, utilities, traffic signal controller cabinets, structures, walls, access gates, and fences, etc. (Ord. No. 11-20, § 4, 12-8-20)
(B)
Sight visibility triangle measurements.
(1)
Driveway intersecting street or alley. The area on both sides of a driveway formed by the intersection of a driveway and a street or alley with a length of ten feet along the driveway, a length of ten feet along the street or alley right-of-way and the third side being a line connecting the ends of the other two lines.
(2)
Alley intersecting street. The area formed by the intersection of an alley and a street with a length of ten feet along the alley right-of-way, a length of 20 feet along the street right-of-way, and the third side being a line connecting the ends of the other two lines.
(3)
Rights-of-way intersecting in Central Business District. Within the Central Business District (CBD), the area formed by the intersection of two or more street rights-of-way with two sides of the triangular area being twenty (20) feet in length along each street, measured from their point of intersection, and the third side being a line connecting the ends of the other two lines.
(4)
Rights-of-way intersecting in single family residential areas. For single family residential zoned property the area of the property located at the corner formed by the intersection of two public rights-of-way with two sides of the triangular area being 25 feet in length along the abutting public right-of-way lines, measured from their point of intersection, and the third side being a line connecting the ends of the other two lines.
(5)
Rights-of-way in county, state or federal jurisdiction. Sight visibility measurements at the intersection of a right-of-way, accessway, or driveway and a right-of-way under County, State or Federal jurisdiction are subject to sight visibility requirements from those authorities.
(6)
Other intersections. In all other situations, the area of property located at a corner formed by the intersection of two or more public rights-of-way with two sides of the triangular area being 40 feet in length along the abutting public right-of-way lines, measured from their point of intersection, and the third side being a line connecting the ends of the other two lines.
(C)
Intersections. When an access way intersects a public right-of-way, all visual obstructions within the sight visibility triangle shall provide unobstructed cross-visibility at a level between three feet and six feet. Trees or palms having canopy limbs, foliage and fronds shall be maintained in such a manner that cross visibility is provided. One tree or palm shall be permitted, providing the mature trunk diameter does not exceed 15 inches. Trees shall not be located within six feet from the edge of any uncurbed access way pavement. Trees may have a four-foot offset from the face of a non-mountable type curb.
(D)
Landscape nodes. All trees or palms installed in nodes within a right-of-way shall maintain a four foot offset from the face of the curb. All shrubs and ground covers shall be maintained below 36 inches in height. All tree canopies must be maintained above eight feet in height. The mature trunk diameter of any tree or palms shall not exceed 15 inches. There shall be no encroachment of trees, tree limbs or palm fronds in or over a travel lane lower than 14.5 feet or lower than eight feet over a sidewalk. Private property owners shall be responsible for maintaining landscaping on their property that encroach into these areas.
(E)
Relief. The request for a relief from the sight visibility triangle dimensions may be granted by the City Engineer on a case-by-case basis and the review shall take into consideration neighborhood characteristics such as the locations of schools, parks, and other community facilities, and street characteristics such as the pavement width, width of the right-of-way to curb or sidewalk, curvature of the street, one-way directional traffic, presence of on-street parking spaces, speed limit and other similar elements. Denial of relief by the City Engineer may be appealed to the City Commission.
(A)
Enclosures required for private pools. All private or family type pools, except those defined in (D) of this Section, shall be enclosed by fence or other enclosures so that the premises upon which the pool is located is enclosed from adjoining yards or property.
(B)
Prerequisite to approval; specifications.
(1)
No swimming pool final inspection and approval shall be given by the Building Department, unless there has been erected a safety barrier as hereinafter provided.
(2)
The safety barrier shall take the form of a screened-in patio, a wooden fence, a wire fence, a rock wall, concrete block wall, or other materials so as to enable the owner to blend the same with the style of architecture planned or in existence on the property. The safety barrier which shall not be less than 48 inches in height, shall be erected either around the swimming pool or around the premises on which the swimming pool is erected. In either event, it shall enclose the area entirely, prohibiting unrestrained admittance to the enclosed area, except that where the entire premises are fenced, and one side fronts on either the Intracoastal waterway, a finger canal, or the ocean, then no fence shall be required along that side fronting the water. All gates must be self-latching with latches placed four feet above the underlying ground or otherwise made inaccessible from the outside to small children; however, the door of any dwelling forming part of the enclosure hereinabove required need not be so equipped.
(C)
Responsibility for, plans to show compliance.
(1)
No person in possession of property within the city, either as owner, purchaser, lessee, tenant, or a licensee, upon which is presently situated a swimming pool or a family pool having a minimum depth of 24 inches as determined hereinabove shall fail to provide and maintain a fence or wall as herein provided.
(2)
No building permit shall be issued for the construction of a family pool unless there is clearly shown on the plans submitted to the City Building Official or on other construction specifications submitted to the City Building Official provisions to comply with this section
(D)
Modification of requirements by Commission.
(1)
The City Commission may make modification in individual cases, upon a showing of good cause with respect to the height, nature, or location of the fence, wall, gates, or latches, or the necessity therefor, or may permit other protective devices or structures in lieu thereof. In making these modifications or special exceptions, the City Commission shall be governed by the following standards: The purpose of the fencing requirement herein is to prevent small children from inadvertently wandering into family swimming pools.
(2)
The Commission realizes that there are locations within the city where an unfenced family pool would not create an obvious hazard. In these areas where, due to the nonexistence of a substantial number of small children, no obvious hazard exists, the City Commission may grant modifications or special exceptions and may even dispense with the requirement for fencing. All decisions shall be conditional and subject to revocation in the event circumstances or conditions change in the particular location.
(E)
Requirements not to affect other provisions of Code. Although the provisions of this section are limited in applicability, nothing contained herein shall diminish or otherwise abate the applicability, force, and effect of provisions which allow that a dangerous excavation in the earth may be considered a public nuisance under certain circumstances or any ordinances regulating the construction, use, or maintenance of swimming pools or family pools.
(F)
Exemption for commercial pools; insurance required. All pools connected with commercial ventures such as motels, and the like, within the city, and otherwise guarded or under surveillance by competent and responsible personnel shall not be covered by this Section. However, the owners of those operations shall be required to maintain adequate liability insurance policies covering those pools in an amount of not less than $100,000.00 through $300,000.00 coverage, if they choose not to erect a protective fence as described herein.
(G)
Yard encroachment. Swimming pools at grade level are allowed to encroach into the required setbacks as follows. (Ord. No. 13-24, § 4, 7-9-24)
(1)
Conventional single-family lots. (Ord. No. 13-24, § 4, 7-9-24)
(a)
Swimming pools may extend into the rear, interior or street side setback areas but no closer than ten feet to any property line. Swimming pools shall not extend into the front setback area required by Section 4.3.4(K). [Amd. Ord. 24-04 5/18/04]; [Amd. Ord. 41-92 9/8/92]; [Amd. Ord. 13-91 2/26/91] (Ord. No. 13-24, § 4, 7-9-24)
(b)
When adjacent to at least 50 feet of common open area, as defined in Section 4.3.4(H)(5), swimming pools may extend into the rear or interior side setback area, no closer than five feet to the property line. [Amd. Ord. 24-04 5/18/04]; [Amd. Ord. 41-92 9/8/92] (Ord. No. 13-24, § 4, 7-9-24)
(c)
A screened pool enclosure shall not be permitted to encroach into side and rear setback areas except as allowed in Section 4.3.4(H)(5). [Amd. Ord. 24-04 5/18/04]; [Amd. Ord. 41-92 9/8/92] (Ord. No. 13-24, § 4, 7-9-24)
(2)
Zero lot line developments. (Ord. No. 13-24, § 4, 7-9-24)
(a)
Swimming pools may extend into the interior side setback no closer than five feet from the property line. (Ord. No. 13-24, § 4, 7-9-24)
(b)
A swimming pool may extend no closer than five feet from the rear property line, except along the perimeter of the development where a 10 foot setback is required, unless adjacent to at least 50 feet of common open area as defined in Section 4.3.4(H)(5). [Amd. Ord. 24-04 5/18/04] (Ord. No. 13-24, § 4, 7-9-24)
(3)
Townhouse developments. Swimming pools in townhouse developments may have a five foot side interior setback. (Ord. No. 13-24, § 4, 7-9-24)
(4)
Swimming pools are prohibited in dedicated easements unless written approval of the easement holder is obtained and a hold harmless agreement is executed. [Amd. Ord. 24-04 5/18/04] (Ord. No. 13-24, § 4, 7-9-24)
(A)
Purpose and intent. The objective of this Section is to improve the appearance of setback and yard areas in conjunction with the development of commercial, industrial, and residential properties, including off-street vehicular parking and open-lot sales and service areas in the City, and to protect and preserve the appearance, character and value of the surrounding neighborhoods and thereby promote the general welfare by providing minimum standards for the installation and maintenance of landscaping. This Section is further intended to fulfill objectives as contained within the Conservation, Sustainability, and Resiliency Element of the adopted Comprehensive Plan, by providing for the conservation of potable and non-potable water; the implementation of Florida-friendly landscaping principles; proper tree selection adjacent to or within utilities to mitigate damages which may be caused by trees; encouraging the creation or preservation of open space; maintaining permeable land areas essential to surface water management and aquifer recharge; encouraging the preservation of existing plant communities; encouraging the planting of site specific, native and drought tolerant plant materials; establishing guidelines for the installation and maintenance of landscape materials and irrigation systems; reducing air, noise, heat, and chemical pollution through the biological filtering capacities of trees; reducing the temperature of the microclimate through the process of evapotranspiration; and promoting energy conservation through the creation of shade. (Ord. No. 23-20, § 35, 9-10-20)
The provisions of this Section are minimum standards which may be increased in accordance with the guidelines contained herein as well as aesthetic criteria established by the Site Plan Review and Appearance Board and the Historic Preservation Board when applicable. Additional landscape requirements may be required for certain zoning districts and roadways as provided for elsewhere in these regulations. [Amd. Ord. 6-12 2/21/12]; [Amd. Ord. 50-98 1/5/99] (Ord. No. 23-20, § 35, 9-10-20)
(B)
Applicability. The provisions of this Section shall apply as follows:
(1)
To the construction of single family homes, for which a building permit is applied for on or after October 1, 1990. Such properties shall comply with minimum standards set forth in Section 4.6.16(H)(1) and other applicable sections of 4.6.16; [Amd. Ord. 22-96 5/21/96]
(2)
To existing development of all types, including, but not limited to, commercial, industrial and multi-family development including duplexes, but excluding single family detached dwellings on a single lot. Such development shall comply with the minimum standards set forth within Sections 4.6.16(C)(1) and 4.6.16(H)(6) and other applicable Sections of 4.6.16, in addition to all requirements set forth in the approved landscape plan of record. [Amd. Ord. 6-12 2/21/12]; [Amd. Ord. 22-96 5/21/96]
(3)
To any new development, or any modification of existing development. That portion of the site which is being newly developed or modified must comply with the requirements contained herein; [Amd. Ord. 22-96 5/21/96]
(4)
To any modification to existing development which results in an increase of 25 percent in the gross floor area of the structure, or structures, situated on the site. In such cases the entire site shall be upgraded to present landscape standards; [Amd. Ord. 22-96 5/21/96]
(C)
Compliance, review, appeal, and relief. [Amd. Ord. 22-96 5/21/96]
(1)
Compliance.
(a)
Prior to the issuance of a building permit for a structure or a paving permit, compliance with the requirements of Section 4.6.16 shall be assured through the review and approval of a landscape plan submitted pursuant to Section 2.4.3(C), including the following, if applicable: [Amd. Ord. 6-12 2/21/12]; [Amd. Ord. 22-96 5/21/96]
1.
A landscape permit, which shall be required for all work whose landscape improvement valuation is greater than $1,000.00. [Amd. Ord. 6-12 2/21/12]
(b)
Prior to upgrading landscaping on an existing site, a landscape plan shall be submitted which shall: [Amd. Ord. 22-96 5/21/96]
1.
Be drawn to scale consistent with the site plan with crowded areas provided in a larger scale presentation. [Amd. Ord. 22-96 5/21/96]
2.
Clearly delineate the existing and proposed parking spaces or other vehicular use areas, access aisles, sidewalks, building locations and similar features. [Amd. Ord. 22-96 5/21/96]
3.
Clearly show property lines and all Right-of-Ways adjacent to existing property to be improved. [Amd. Ord. 6-12 2/21/12]
4.
Contain a Statement of Intent as to the method and coverage of irrigation (irrigation systems require a separate permit; See Section 4.6.16(F) for additional irrigation regulations). [Amd. Ord. 6-12 2/21/12]; [Amd. Ord. 22-96 5/21/96]
5.
Designate by name and location the plant material to be installed or preserved. [Amd. Ord. 22-96 5/21/96]
6.
Show location of overhead lines and utility easements. [Amd. Ord. 22-96 5/21/96]
7.
Show proposed or existing locations of refuse areas and methods of screening. [Amd. Ord. 22-96 5/21/96]
8.
Show proposed or existing locations of free standing signs. [Amd. Ord. 22-96 5/21/96]
9.
Provide an Existing Tree Survey documenting all trees with a caliper equal to or greater than four inches. All trees shall have a number or symbol that is referenced in a table. This table shall be shown on the Existing Tree Survey and shall document the botanical and common name, caliper, height and spread and overall condition for each tree. [Amd. Ord. 6-12 2/21/12]
10.
Show landscape calculations in a legible tabular format. The type of calculations used will be determined by the property use. Single family dwellings shall utilize the Single family dwelling calculations. Duplexes shall utilize the Duplex calculations. Multi-family, Industrial and Commercial use properties shall utilize the Multi-family/Industrial/Commercial calculations. [Amd. Ord. 6-12 2/21/12]
11.
Show proposed plant material in a tabular form. Include botanical and common names, specifications, quantity and symbol (if applicable). [Amd. Ord. 6-12 2/21/12]
12.
Be accompanied by a Landscape Cost Estimate when proposed landscape improvements are valued at $1,000.00 or more. Landscape improvements include the cost of material, labor and profit. [Amd. Ord. 6-12 2/21/12]
13.
Label all plant material to be of Florida # 1 grade or better as illustrated in the Grades and Standards for Nursery Plants, Part 1 (current edition) by the Florida Department of Agriculture. All material that is graded lower than Florida #1 quality shall be rejected. [Amd. Ord. 6-12 2/21/12]
14.
Show all sight triangles in their proper locations. See Section 4.6.14. [Amd. Ord. 6-12 2/21/12]
15.
Be prepared, signed and sealed by a Registered Landscape Architect. Exceptions include Single Family and Duplex Dwellings located in Single Family Zoning Districts that are not within an Overlay District that requires them to be prepared by a Registered Landscape Architect. [Amd. Ord. 6-12 2/21/12]
(c)
The final completion of landscaping prior to issuance of the Certificate of Occupancy. All landscaping and related items shall be installed in accordance with this section before the Certificate of Occupancy is issued. [Amd. Ord. 6-12 2/21/12]
(2)
Review. Landscape plans of existing properties shall be reviewed by City Staff as appointed by the Chief Building Official. The purpose of the review of landscape plans for existing duplex, industrial, commercial and multi-family properties is to determine if the plans meet the minimum required standards. [Amd. Ord. 6-12 2/21/12]; [Amd. Ord. 22-96 5/21/96]
(3)
Appeals. Appeal from the City Staff shall be to the Site Plan Review and Appearance Board or the Historic Preservation Board as applicable. Appeal from the Site Plan Review and Appearance Board or the Historic Preservation Board shall be to the City Commission. [Amd. Ord. 6-12 2/21/12]; [Amd. Ord. 22-96 5/21/96]
(4)
Relief. Relief from the provisions of this Section shall only be granted through the waiver process [Section 2.4.7(B)] by the City Commission, Site Plan Review and Appearance Board or Historic Preservation Board as applicable. [Amd. Ord. 22-96 5/21/96]; [Amd. Ord. 83-95 01/09/96]
(D)
Site planning and design requirements. The following site design standards, concepts, and practices shall be adhered to in the preparation of landscape plans. [Amd. Ord. 6-12 2/21/12]
(1)
Concepts for water conservation. Creative site development concepts shall be used in order to promote water conservation. Water requirements may be reduced by providing for:
(a)
The preservation of existing native plant communities;
(b)
The re-establishment of native plant communities;
(c)
The use of site specific plant materials;
(d)
The use of shade trees to reduce transpiration rates of lower story plant materials;
(e)
Limited amounts of lawn grass areas;
(f)
Site development that retains storm runoff on site;
(g)
The use of pervious materials for non-landscaped and parking areas.
(2)
Preservation and promotion of existing plant communities. All existing native plant communities on sites proposed for development shall be preserved where possible through their incorporation into the required open space. Existing plant communities that are specified to remain shall be preserved to the greatest extent possible with trees, understory, and ground covers left intact and undisturbed, except for the eradication of prohibited plant species.
(a)
Tree protection. Trees which are to be preserved on a site shall be protected from damage during the construction process according to appropriate tree protection techniques. The "Tree Protection Manual for Builders and Developers" published by the Division of Forestry of the State of Florida, Department of Agriculture and Consumer Service, shall be the standard for determining the appropriateness of proposed techniques. All trees which are to be preserved and do not survive shall be replaced by a tree of equal size or an equivalent number of trees based on trunk diameter. [See Section 3.4.6(G) re Tree Removal Permits]
(b)
Portion of native communities to remain. When natural plant communities occur on a parcel of land which is to be developed, at least 25 percent of the required open space must be in the form of preserved natural plant communities.
(c)
Native species required. A portion of all plant materials required to be planted shall be native species. The percentage of native plant materials required shall be as follows:
(i)
Effective October 1, 1990, 25 percent of required trees and 25 percent of all other required plant materials shall be native;
(ii)
Effective October 1, 1991, 35 percent of the required trees and 25 percent of all other required plant materials shall be native;
(iii)
Effective October 1, 1992, 50 percent of the required trees and 25 percent of all other required plant materials shall be native.
(d)
Substitution of mature, exceptional tree specimens for required parking. The intent of this section is to preserve those selected mature trees that are not able to be located in required landscape areas while maintaining a reasonable level of off-street parking for new or expanding multi-family, commercial, and industrial developments or redevelopments, as the preservation of these trees, in most instances, is of higher order than providing the exact amount of required off-street parking. [Amd. Ord. 2-02 2/5/02]
The City may require or the applicant may request the substitution of existing, mature, healthy, exceptional tree specimens for required parking spaces in instances where the following conditions are met: [Amd. Ord. 2-02 2/5/02]
1.
Such trees are of a hardwood and/or deciduous variety and a minimum of 12 inches in diameter measured one foot above grade. [Amd. Ord. 2-02 2/5/02]
2.
Such trees are free of disease and insects. [Amd. Ord. 2-02 2/5/02]
3.
Every effort has been made in planning and design of parking areas to accommodate such trees in the landscape islands required in Section 4.6.16(H)(3). [Amd. Ord. 2-02 2/5/02]
4.
Such trees are protected during construction as prescribed in Section 4.6.16(D)(2)(a). [Amd. Ord. 2-02 2/5/02]
The applicant shall indicate on the site plan the location of all required parking spaces and indicate those spaces that will be eliminated in order to preserve trees. The amount of parking spaces permitted to be eliminated for any project shall be determined on a case by case basis. [Amd. Ord. 2-02 2/5/02]
The Historic Preservation Board (HPB) or Site Plan Review and Appearance Board (SPRAB), as appropriate, may approve such requests or require such preservation provided the conditions of this subsection are met. [Amd. Ord. 2-02 2/5/02]
A decision of HPB or SPRAB disapproving a request for or requiring tree preservation may be appealed to the City Commission pursuant to LDR Section 2.4.7(E). [Amd. Ord. 2-02 2/5/02]
All tree(s) which are to be preserved under this section and do not survive shall be replaced by a tree a minimum of 18 feet in height with a ten-foot spread of canopy. The City Horticulturist shall approve such replacements. [Amd. Ord. 2-02 2/5/02]
(3)
Site specific planting materials. Trees and other vegetation used in the landscape design should be appropriate to the conditions in which they are planted, to the greatest extent, they shall be:
(a)
Salt tolerant relative to the area in which they are planted;
(b)
Able to withstand reduced water conditions if planted in sandy soils;
(c)
Able to withstand wet conditions when planted around retention/ detention ponds or in swales;
(d)
Deleted. [Amd Ord. 50-98 1/5/99]
(4)
Tree selection adjacent to or within utility easements. Required perimeter landscape buffers often coincide with utility easements. Careful selection of tree species is essential to minimize conflicts as trees mature. Trees planted subsequent to the effective date of this ordinance shall meet the following criteria: [Amd. Ord. 50-98 1/5/99]
(a)
The ultimate mature height and width of a tree to be planted should not exceed the available overhead growing space. Tree species shall be consistent with the recommendation in the most recent publication of Florida Power and Light Company's "Plant The Right Tree In The Right Place" (copies available from the Community Improvement Department), which provides recommendations for tree selections. [Amd. Ord. 50-98 1/5/99]
(b)
Trees shall not be planted within ten feet of any underground utilities. [Amd. Ord. 50-98 1/5/99]
(c)
Trees shall have non-invasive growth habits which will not interfere with adjacent above/underground utilities. [Amd. Ord. 50-98 1/5/99]
(E)
Landscape design standards. The following shall be considered the minimum standards for the design and installation of all plant materials. (Ord. No. 11-23, § 3, 9-5-23)
(1)
Florida-friendly landscape principles. Florida-friendly landscape principles shall be utilized in landscape designs and installations including planting the right tree or plant in the right place, efficient watering, appropriate fertilization, mulching, the use of plant materials that attract wildlife, responsible management of yard pests, recycling yard waste, reduction of stormwater runoff, and waterfront protection. Important considerations include: [Amd. Ord. 6-12 2/21/12] (Ord. No. 11-23, § 3, 9-5-23)
(a)
Appropriate planning and design that considers the size, shape, and sun orientation of the lot, soil type, topography, intended use of area and site specific planting to minimize irrigation waste. (Ord. No. 11-23, § 3, 9-5-23)
(b)
Soil analysis and appropriate preparation to provide better absorption of water and beneficial plant nutrients. (Ord. No. 11-23, § 3, 9-5-23)
(c)
Efficient irrigation systems that permit turf and other less drought tolerant plantings to be watered separately from more drought tolerant plantings, consideration of low volume drip, spray or bubbler emitters for trees, shrubs and ground covers. (Ord. No. 11-23, § 3, 9-5-23)
(d)
Reduction of turf areas and the installation of low water demand shrubs and living ground covers in conjunction with organic mulches. (Ord. No. 11-23, § 3, 9-5-23)
(e)
Utilization of drought tolerant plant materials and the grouping of plants with similar water requirements.
(f)
Application of mulches to increase moisture retention, reduce weed growth and erosion and increase the organic content of soil upon degradation. Mulch should be initially applied at a three inch depth, but pulled away from direct contact with stems and trunks to avoid rotting. Mulched planting beds are an ideal replacement for turf areas. (Ord. No. 11-23, § 3, 9-5-23)
(2)
Installation. All landscaping shall be installed according to sound horticultural and planting procedures with the quality of plant materials herein described. Landscaping shall be installed to meet all applicable ordinances and code requirements. (Ord. No. 11-23, § 3, 9-5-23)
(3)
Vehicular encroachment. There shall be no vehicular encroachment into any required landscape area. All landscape areas adjacent to parking spaces, accessways, and/or vehicular use areas shall be separated by carstops or non-mountable, reinforced concrete curbing of the type characterized as "Type D" in the State of Florida Department of Transportation roadway design manuals, or curbing of comparable durability. In the case of curbing around required landscaped islands, the width of the curbing shall be excluded from the calculation of the minimum dimensions of the required island. Landscape islands are required to be a minimum of nine feet in width exclusive of the curb width. In paved parking lots, the portion of the parking space extending beyond the car stop may be sodded, and vehicles may encroach into the area. [Amd. Ord. 6-12 2/21/12] (Ord. No. 11-23, § 3, 9-5-23)
(4)
Quality. All plant materials shall conform to the Standards for Florida No. 1 or better as identified in "Grades and Standards for Nursery Plants" by the State of Florida Department of Agriculture and Consumer Services. (Ord. No. 11-23, § 3, 9-5-23)
(5)
Trees. All tree species shall have an average mature spread of crown greater than 20 feet and trunks that can be maintained in a clean condition with over six feet of clear mature wood. If necessary, a grouping of tree species with an average mature spread of crown less than 20 feet may be substituted so as to create the equivalent of a 20 foot spread of crown. Tree species shall be a minimum of 16 feet in overall height at the time of planting, with a minimum of six feet of single straight trunk with eight feet of clear trunk, and a seven-foot spread of canopy. Tree species required for single family homes and duplexes shall be a minimum of 12 feet in overall height at the time of planting, with a minimum of four feet of single straight trunk with six feet of clear trunk, and a six-foot spread of canopy. [Amd. Ord. 6-12 2/21/12] (Ord. No. 11-23, § 3, 9-5-23)
When more than ten trees are required, a mix of species shall be provided. The number of species shall vary according to the overall number of trees required. This species mix requirement shall not apply to areas of vegetation required to be preserved by law. The minimum number of species is as follows: (Ord. No. 11-23, § 3, 9-5-23)
(6)
Palms. Palms may be used for up to 50 percent of the required trees. Palms considered susceptible to lethal yellowing by the Florida Department of Agriculture shall not be used to fulfill the requirements of this article. (Ord. No. 11-23, § 3, 9-5-23)
(a)
Palms must have an overall height of a minimum of 16 feet and a minimum of eight feet of clear trunk at the time of planting, except for single family homes and duplexes, which may have palms with an overall height of a minimum of 12 feet and a minimum of six feet of clear trunk at the time of planting. (Ord. No. 11-23, § 3, 9-5-23)
(b)
Palms with a mature spread of crown of at least 15 feet, including Canary Date Palms, Bismark Palms, Coconut Palms and Royal Palms may be credited on a one for one basis with shade trees. Coconut Palms are permitted to have a minimum of two feet of grey wood at the time of planting, providing they are located so that the fronds are not hazardous. Palm species that do not have a mature spread of crown of at least 15 feet shall be grouped in threes, and three palms shall equal one shade tree. (Ord. No. 11-23, § 3, 9-5-23)
(c)
Minimum overall palm height may be increased if the palm variety has fronds that hang below an eight-foot clearance, and are located in an area where pedestrians may be adversely affected by the fronds. (Ord. No. 11-23, § 3, 9-5-23)
(7)
Shrubs and hedges. All shrubs and hedges shall be a minimum of two feet in height when measured immediately after planting. Hedges shall be planted and maintained to form a continuous, unbroken, solid, visual screen within a maximum of one year after planting. (Ord. No. 11-23, § 3, 9-5-23)
(a)
Shrubs shall be spaced a maximum of two feet, center to center, unless plants are exceptionally full, in which case the shrubs shall be permitted to be planted up to a maximum of 30 inches, center to center, provided the branches are touching at the time of planting. (Ord. No. 11-23, § 3, 9-5-23)
(b)
Hedges must be allowed to attain height of 36 inches except where providing adequate and safe sight distance requires them to be maintained at a 30-inch height. (Ord. No. 11-23, § 3, 9-5-23)
(c)
Hedges required for screening shall meet the following expectations: [Amd. Ord. 6-12 2/21/12] (Ord. No. 11-23, § 3, 9-5-23)
[Amd. Ord. 6-12 2/21/12] (Ord. No. 11-23, § 3, 9-5-23)
(8)
Lawn grass. The irrigation of turf or sod lawn areas is a major source of water demand. Therefore, the use of laws areas is regulated as follows: (Ord. No. 11-23, § 3, 9-5-23)
(a)
Maximum Coverage. Portions of landscaped areas that have been customarily designed as lawns shall be: Preserved as natural plant communities; planted as redeveloped native areas; or planted in traditional mixes of trees, shrubs, and ground covers. [Amd. Ord. 81-91 12/3/91] (Ord. No. 11-23, § 3, 9-5-23)
(i)
Commercial, industrial and multi-family developments. No more than 70 percent of the combination of the required interior greenspace and the required perimeter landscape buffers, shall be planted in lawn grass. The balance shall be planted in a mix of shrubs and ground covers. [Amd. Ord. 6-12 2/21/12]; [Amd. Ord. 81-91 12/3/91] (Ord. No. 11-23, § 3, 9-5-23)
(ii)
Single family and duplex residences. No more than 80 percent of the pervious lot area shall be planted in lawn grass. A minimum of 20 percent of the pervious lot area shall be planted in shrubs and ground covers. [Amd. Ord. 6-12 2/21/12; Amd. Ord. 81-91 12/3/91] (Ord. No. 11-23, § 3, 9-5-23)
(b)
Maintenance. Lawn grass shall be clean and reasonably free of weeds and noxious pests or diseases. When grass areas are to be seeded, sprigged or plugged, specifications must be submitted to and approved by the City. One hundred percent coverage must be achieved within 90 days. (Ord. No. 11-23, § 3, 9-5-23)
(c)
Mandatory Sod Usage. Solid sod must be used in swales, canal banks, rights-of-way and other areas subject to erosion. (Ord. No. 11-23, § 3, 9-5-23)
(9)
Ground cover: Ground covers used in lieu of grass, in whole or part, shall be planted at such spacing to present a finished appearance and reasonably complete coverage within six months after planting. All ground cover areas must be kept free from weeds. (Ord. No. 11-23, § 3, 9-5-23)
(10)
Vines: Vines shall be a minimum of 30 inches in height immediately after planting and may be used in conjunction with fences, screens, or walls to meet physical barrier requirements as specified. (Ord. No. 11-23, § 3, 9-5-23)
(11)
Organic Mulches: Organic mulches may be used in combination with living plants as part of a landscape design, however, organic mulches shall not by themselves constitute landscaping. No more than 25 percent of a front or side street setback may be comprised of mulch independent of living plant materials. [Amd. Ord. 6-12 2/21/12] (Ord. No. 11-23, § 3, 9-5-23)
(12)
Artificial Turf. Artificial turf is allowed on both residential and non-residential properties, subject to the following requirements: (Ord. No. 11-23, § 3, 9-5-23)
(a)
General. (Ord. No. 11-23, § 3, 9-5-23)
(i)
The installation of artificial turf requires a landscape permit. (Ord. No. 11-23, § 3, 9-5-23)
(ii)
Artificial turf areas may not be included in open space calculations. (Ord. No. 11-23, § 3, 9-5-23)
(iii)
Artificial turf is considered pervious but cannot be used within permanent drainage features, including ponds and swales. (Ord. No. 11-23, § 3, 9-5-23)
(iv)
Artificial turf shall not be installed closer than five feet to the property line. (Ord. No. 11-23, § 3, 9-5-23)
(v)
Artificial turf shall not be installed in or be visible from a public or private right-of-way. (Ord. No. 11-23, § 3, 9-5-23)
(vi)
Artificial turf may be used in combination with living plants as part of a landscape design, but artificial turf shall not by inset constitute landscaping. (Ord. No. 11-23, § 3, 9-5-23)
(b)
Locational criteria. (Ord. No. 11-23, § 3, 9-5-23)
(i)
Residential and commercial uses. Residential and commercial properties are subject to the following additional criteria: (Ord. No. 11-23, § 3, 9-5-23)
1.
After building coverage, hardscaping areas, and minimum open space requirement areas are subtracted from the total lot area, no more than 15 percent of the remaining lot area may be comprised of artificial turf. (Ord. No. 11-23, § 3, 9-5-23)
2.
Artificial turf is allowed in rear and interior side yards, and in side street yards when shielded from view. Artificial turf may also be used in conjunction with driveway pavers. (Ord. No. 11-23, § 3, 9-5-23)
(ii)
Recreational uses. Artificial turf is allowed in recreational use areas, and is not required to be shielded from view. (Ord. No. 11-23, § 3, 9-5-23)
(iii)
Historic. On properties located within a Historic District or on Individually Designated Sites, as listed on the Local Register of Historic Places, artificial turf is only allowed in rear and side yards and must be shielded from view. (Ord. No. 11-23, § 3, 9-5-23)
(c)
Materials and installation. .....All artificial turf must comply with the following minimum standards for materials and installation. (Ord. No. 11-23, § 3, 9-5-23)
(i)
The artificial turf system shall be lead-free, and use recycled or organic plant-derived materials and natural infill components, including, but not limited to, cork, coconut, corn husk, rice husk, and sand. The use of crumb rubber and other synthetic materials shall be prohibited in all applications except for sports fields. Documentation must be provided that identifies all recyclable or natural components of the artificial turf system. (Ord. No. 11-23, § 3, 9-5-23)
(ii)
Permit applications shall include Total Content Leach Protocol (TCLP) test documentation demonstrating that the artificial turf yarn and backing materials are disposable under normal conditions at any U.S. landfill station. (Ord. No. 11-23, § 3, 9-5-23)
(iii)
A minimum eight-year manufacturer's warranty is required. (Ord. No. 11-23, § 3, 9-5-23)
(iv)
All artificial turf shall be installed over a subgrade that provides positive drainage and an evenly graded mass of compacted, porous crushed rock aggregate material. Bases may not be comprised of sand only. Proper drainage shall be provided for all artificial turf installations to prevent runoff or pooling of water. (Ord. No. 11-23, § 3, 9-5-23)
(v)
Artificial turf must be designed and permitted with a minimum permeability of 30 inches per hour per square yard. (Ord. No. 11-23, § 3, 9-5-23)
(vi)
Artificial turf must have lifelike individual blades of grass that emulate natural turf or sod lawn areas with the grain pointing in a single direction, and no visible seams. (Ord. No. 11-23, § 3, 9-5-23)
(vii)
Artificial turf shall not be installed directly against the trunk of trees or palms. A three-foot mulch bed measured from the base of the tree or palm must be maintained. Installation around existing trees shall be monitored and may be restricted to ensure that the overall health of the tree will not be compromised. (Ord. No. 11-23, § 3, 9-5-23)
(viii)
An in-progress inspection shall be required to ensure that the appropriate base material has been installed to manufacturer specifications. A final inspection shall also be required. (Ord. No. 11-23, § 3, 9-5-23)
(d)
Maintenance. Artificial turf shall be maintained free of dirt, mud, stains, weeds, debris, tears, holes, impressions, and fading. Maintenance shall include, but not be limited to cleaning, brushing, debris removal, repairs of depressions and ruts to maintain a visually-level surface; elimination of any odors, flat or matter areas, weeds, and invasive roots, and maintenance of edges. (Ord. No. 11-23, § 3, 9-5-23)
(F)
Irrigation requirements. All landscaped areas shall be provided with a fully automated sprinkler system that will provide complete coverage of all plant materials and grass to be maintained. All systems shall be designed to allow for head-to-head coverage (100-percent coverage with 100-percent overlap). Low-volume irrigation systems, such as drip or micro-irrigation systems, are strongly encouraged. [Amd. Ord. 6-12 2/21/12]
(1)
Watering restrictions. The Landscape Irrigation Restrictions set forth by the South Florida Water Management District (SFWMD), as amended, are hereby adopted and incorporated as if set forth. [Amd. Ord. 6-12 2/21/12]
(2)
Irrigation of existing plant communities. Existing plant communities and ecosystems, maintained in a natural state, do not require and shall not have any additional irrigation water added in any form.
(3)
Reestablished native plant areas. Native plant areas that are supplements to an existing plant community or newly installed by the developer may initially require additional water to become established. The water required during the establishment period shall be applied from a temporary irrigation system, a water truck or by hand watering from a standard hose bib source.
(4)
Irrigation design standards and practices. The following standards shall be considered the minimum requirements for landscape irrigation design: [Amd. Ord. 6-12 2/21/12]
(a)
All landscaped areas shall be provided with a fully automated sprinkler system that will provide complete coverage of all plant materials and grass to be maintained. The use of recycled water is encouraged. [Amd. Ord. 6-12 2/21/12]
(b)
All new installations of landscape irrigation systems and substantial modifications of existing irrigation systems which use well water, excluding single family residences, shall install, operate and maintain rust inhibitor equipment to prevent staining of structures and pavements. [Amd. Ord. 30-93 4/13/93]
(c)
Wherever feasible, sprinkler heads irrigating lawns or other high water demand landscape areas shall be circuited so they are on a separate zone or zones from those irrigating trees, shrubbery or other reduced water requirement areas.
(d)
Automatically controlled irrigation systems shall be operated by an irrigation controller that is capable of watering high water requirement areas on a different schedule from low water requirement areas.
(e)
Sprinkler heads shall be installed and maintained so as to minimize spray upon any public access, sidewalk, street or other non-pervious area.
(f)
The use of low trajectory spray nozzles is encouraged in order to reduce the effect of wind velocity on the spray system.
(g)
The use of low volume or drip systems is encouraged.
(h)
All new installations of landscape irrigation systems, and modifications of existing irrigation systems, shall be equipped with a rain sensing device which will override the irrigation cycle of the system when adequate rainfall has occurred. Further, these rain sensing devices must be operated and maintained for the life of the irrigation system. [Amd. Ord. 30-93 4/13/93]
(i)
The use of pop-up sprinkler heads is required in the swale area between the property line and the edge of pavement of the adjacent right-of-way to minimize pedestrian hazard.
(j)
The plant palette and irrigation system shall be appropriate for site conditions, taking into account that, in some cases, soil improvement can enhance water use efficiency. [Amd. Ord. 6-12 2/21/12]
(k)
Plants shall be grouped together by irrigation demand. [Amd. Ord. 6-12 2/21/12]
(l)
The percentage of landscaped area in irrigated high water use hydrozones should be minimized. Landscape plans shall depict the different hydrozones and irrigate according to demand. [Amd. Ord. 6-12 2/21/12]
(m)
All irrigation systems shall meet current Best Management Practices as established by the most current version of the Florida Green Industries Best Management Practices Handbook, including the uniform distribution of water throughout all zones. [Amd. Ord. 6-12 2/21/12]
(n)
Irrigation plan shall meet the following requirements: [Amd. Ord. 6-12 2/21/12]
(1)
Scale of drawing shall be consistent with Site and Landscape Plans. [Amd. Ord. 6-12 2/21/12]
(2)
Show location of existing and proposed buildings, paving, and site improvements. [Amd. Ord. 6-12 2/21/12]
(3)
Show locations of Water Meter, Point of Connection (POC), Backflow Preventer, Controller, Pump, Zone Valves, Rain shutoff device, Rust-inhibiting device (if applicable), Main and Lateral Lines, Sprinkler Heads and Sleeves. [Amd. Ord. 6-12 2/21/12]
(o)
An irrigation legend shall be shown on irrigation plan. The irrigation legend will have the following elements: Separate symbols for all irrigation equipment with different spray patterns and precipitation rates and pressure compensating devices; general description of equipment; manufacturer's name and model number for all specified equipment; recommended operating pressure per nozzle and bubbler and low-flow emitter; manufacturer's recommended overhead and bubbler irrigation nozzle rating in gallons per minute or gallons per hour for low flow point applicators; minimum (no less than 75 percent of maximum spray radius) and maximum spray radius per nozzle; and manufacturer's rated precipitation rate per nozzle at specified per square inch. [Amd. Ord. 6-12 2/21/12]
(G)
Prohibited and controlled species.
(1)
Prohibited plant species. All prohibited plant species shall be eradicated from the development site and reestablishment of prohibited species shall not be permitted. The following plant species shall not be planted in the City of Delray Beach:
(a)
Melalecua quinquenervia (commonly known as Punk tree, paper bark, Cajeput, Melaleuca); or
(b)
Schinus terebinthifolius (commonly known as Brazilian Pepper or Florida Holly); or
(c)
Casuarina Species (commonly known as Australian Pine); or
(d)
Acacia auriculiformis (commonly known as Earleaf Acacia); or [Amd. Ord. 6-12 2/21/12]
(e)
Cupianopsis anacardioides (commonly known as Carrotwood); or [Amd. Ord. 6-12 2/21/12]
(f)
Schefflera actinophylla (commonly known as Schefflera or Umbrella tree); or [Amd. Ord. 6-12 2/21/12]
(g)
Bischofia javanica (commonly known as Bischoffia). [Amd. Ord. 6-12 2/21/12]
(2)
Controlled plant species. Ficus species can be planted as individual trees provided they are no closer than 12 feet from any public improvement. Ficus species may be planted within 12 feet of any public improvements only if they are maintained as a hedge which is constantly cultivated and does not exceed six feet in height if located within a setback area. Height may be permitted to reach eight feet when planted on a residential project and used to separate the residential use from an arterial or collector road right-of-way.
Ficus hedges located on private property are allowed to exceed the eight-foot maximum height limit so long as the respective property owner shows documentation that these hedges were taller than eight feet on or before January 31, 2012. [Amd. Ord. 6-12 2/21/12]
(H)
Minimum landscape requirements.
(1)
Single family detached residences. The following minimum standards for landscaping shall apply: (Ord. No. 11-23, § 3, 9-5-23)
(a)
One shade tree shall be planted for every 2,500 square feet of lot area. Shade trees for single family residences shall be a minimum of 12 feet in height with a five-foot spread at the time of installation. Existing trees preserved on the site with the same specifications as above, may be credited toward this tree requirement. [Amd. Ord. 6-12 2/21/12]
(b)
Shrubs shall be installed along the foundation of the side of the residence that faces any street.
(c)
Air-conditioning units five feet or less in height shall be screened with shrubbery or wood fencing tall enough to fully screen the units from view. Units higher than five feet above grade shall be screened with hedges that are half of the height of the unit, but no less than five feet in height. [Amd. Ord. 6-12 2/21/12] (Ord. No. 11-23, § 3, 9-5-23)
(d)
All other lot areas not covered by driveways or structures shall be planted with lawn grass or approved ground cover. (Ord. No. 11-23, § 3, 9-5-23)
(e)
The area between the property line and the edge of pavement of the abutting right-of-way shall be sodded. Rock, gravel, mulch, or artificial turf is expressly prohibited from being used in the right-of-way. (Ord. No. 11-23, § 3, 9-5-23)
(f)
All refuse container storage areas visible from an adjacent street must be screened with fencing, hedging, and an opaque gate in conjunction with hedging. (Ord. No. 11-23, § 3, 9-5-23)
(g)
All landscaped areas shall be provided with an irrigation system, automatically operated, to provide complete coverage of all plant materials and grass to be maintained. The source of water may be either from City water or non-potable water. The use of recycled water is encouraged.
(2)
Duplex residential development.
(a)
One tree shall be planted for every 2,000 square feet of lot area or fraction thereof. Existing trees preserved on the site may be credited toward this tree requirement. [Amd. Ord. 6-12 2/21/12]
(b)
In addition, in consideration of the fact that some duplex units have back-out parking, and no direct screening can be achieved between the parking and street area, hedging and a shade tree will be required to be installed on both sides of the back-out parking area.
(c)
A strip of land a minimum of five feet in width shall be provided around the foundation of the building where it faces the right-of-way and along the side of the building that provides entry for the units and shall be landscaped with shrubs and ground covers. All other lot areas not covered by buildings or paving will be landscaped with sod, shrubs or ground covers.
(d)
In addition the area between the property line and the edge of pavement of the abutting right-of-way shall be provided with sod, irrigation and maintenance.
(e)
All air-conditioning units and other mechanical equipment and refuse areas whose height is five feet or less shall be screened with shrubbery that is tall enough to fully screen the units from view. Equipment five feet to 16 feet above grade shall be screened with hedges that are half of the height of the item to be screened. In such instances, the required hedge shall not be any less than five feet in height. Anything higher than 16 feet shall be screened with shrubbery that is a minimum of eight feet in height. [Amd. Ord. 6-12 2/21/12]
(f)
For duplexes that have a parking lot that does not require back-out parking, the screening specified for new multi-family units provided below shall be required.
(3)
New multiple family, commercial, and industrial development. Multi-family, commercial, industrial and all other uses are required to comply with the minimum requirements for off-street parking. On the site of a building or open-lot use providing an off-street parking, storage or other vehicular use area, where such an area will not be screened visually by an intervening building or structure from an abutting right-of-way or dedicated alley, there shall be provided landscaping as follows:
Perimeter requirements adjacent to public and private rights-of-way:
(a)
A strip of land at least five feet in depth located between the off-street parking area or other vehicular use area and the right-of-way shall be landscaped, provided, however, that should the zoning code of the Delray Code of Ordinances require additional perimeter depths, that the provisions of the zoning code shall prevail. This landscape strip shall be free of any vehicular encroachment, including car overhang. The landscaping shall consist of at least one tree for each 30 linear feet or fraction thereof. The trees shall be located between the right-of-way line and the off-street parking or vehicular use area. Where the depth of the perimeter landscape strip adjacent to the right-of-way exceeds 15 feet, shade trees may be planted in clusters, but the maximum spacing shall not exceed 50 feet. The remainder of the landscape area shall be landscaped with grass, ground cover, or other landscape treatment excluding pavement.
Additionally, a hedge, wall or other durable landscape area shall be placed along the interior perimeter of the landscape strip. If a hedge is used, it must be a minimum of two feet in height at the time of planting and attain a minimum height of three feet above the finished grade of the adjacent vehicular use or off-street parking area within one year of planting.
Multiple tier plantings are strongly encouraged for all properties, regardless of the depth of the landscape buffer. Those properties that have a landscape buffer depth of ten feet or more shall be required to provide an additional layer of groundcover. The groundcover shall be located directly in front of the required hedge, so as to be visible from the adjacent right-of-way. This groundcover shall be installed at one-half of the height of the required perimeter hedge. [Amd. Ord. 6-12 2/21/12]
If a nonliving barrier is used, it shall be a minimum of three feet above the finished grade of the adjacent vehicular use. Nonliving barriers shall require additional landscaping to soften them and enhance their appearance. For each ten feet of nonliving barrier, a shrub or vine shall be planted along the street side of the barrier, in addition to tree requirements.
Earth berms may be used only when installed in conjunction with sufficient plant materials to satisfy the screening requirements. The slope of the berm shall not exceed a 3:1 ratio.
Hedges for multi-family projects which are used to separate a residential use from an adjacent arterial or collector road right-of-way may attain a height of eight feet to mitigate the impact of the adjacent roadway
Perimeter hedging installed to effect screening of storage areas must be a minimum of 75 percent of the height of the storage structure at the time of installation and be permitted to grow to a height to conceal the materials being stored. Perimeter shade trees are required to be planted every 30 feet and are not permitted to be clustered. [Amd. Ord. 6-12 2/21/12]
(b)
The unpaved portion of the right-of-way adjacent to the property line shall be landscaped with sod and provided with irrigation and maintenance.
(c)
The width of accessways which provide access to a site or vehicular use areas may be subtracted from the linear dimensions used to determine the number of trees required.
Perimeter landscaping requirements relating to abutting properties:
(d)
A landscaped barrier shall be provided between the off-street parking area or other vehicular use area and abutting properties. The landscape barrier may be two feet at the time of planting and achieve and be maintained at not less than three nor greater than six feet in height to form a continuous screen between the off-street parking area or vehicular use area and such abutting property. This landscape barrier shall be located between the common lot line and the off-street parking area or other vehicular use area in a planting strip of not less than five feet in width that is free of any vehicular encroachment, including car overhang. Duplexes may be permitted to reduce the perimeter planting strip to two and one-half feet in width in cases where lot frontage is less than 55 feet. In addition, one tree shall be provided for every 30 linear feet of such landscaped barrier or fraction thereof. [Amd. Ord. 6-12 2/21/12]
(e)
Where any commercial or industrial areas abut a residential zoning district or properties in residential use, in addition to requirements established for district boundary line separators in the zoning code, one tree shall be planted every 25 feet to form a solid tree line.
(f)
The provisions for perimeter landscape requirements relating to abutting properties shall not be applicable where a proposed parking area or other vehicular use area abuts an existing hedge or established tree line, the existing hedge and trees may be used to satisfy the landscape requirements provided the existing material meets all applicable standards. The landscape strip, a minimum of five feet in depth, however, is still required, and must be landscaped with sod or ground cover and be free of any vehicular encroachment, including car overhang. If the existing landscaping does not meet the standards of this article, additional landscaping shall be required as necessary to meet the standards. In the event that the landscaping provided by the adjacent property which has been used to satisfy the landscaping requirements for the property making application is ever removed, the property heretofore using the existing vegetation to satisfy landscaping requirements, must then install landscaping as required to comply with the provisions of this code. Interior landscape requirements for parking and other vehicular use areas: [Amd. Ord. 6-12 2/21/12]
(g)
The amount of interior landscaping within off-street parking areas shall amount to no less than ten percent of the total area used for parking and accessways.
(h)
There shall be a group of palms or a shade tree for every 125 square feet of required interior landscaping. No more than 25 percent of these required trees shall be palms.
(i)
Landscape islands which contain a minimum of 135 square feet of planting area, with a minimum dimension of nine feet, exclusive of the required curb, shall be placed at intervals of no less than one landscaped island for every 13 standard parking spaces. One shade tree shall be planted in every island with a minimum of 75 square feet of shrubs and groundcovers. Tree specifications shall adhere to those listed in Section 4.6.16(E)(5) and 4.6.16(E)(6). Where approval for the use of compact parking has be approved, islands may be placed at intervals of no less than one island for every 15 compact parking spaces: [Amd. Ord. 6-12 2/21/12]
1.
The distance between parking islands can be increased up to 15 standard or 17 compact parking spaces but the width of the parking island must be increased by one foot for each additional space (i.e. if the distance between parking islands is 15 standard parking spaces the parking island would have to be 11 feet wide). [Amd. Ord. 6-12 2/21/12]
i.
Properties within the Central Business District (CBD) shall adhere to the same landscape island width stated above, unless documentation of site constraints provide that such island width is not feasible. In such cases, the City will accept landscape islands with a minimum width of seven feet, exclusive of curb, with 105 square feet of planting area. Under no circumstances shall any landscape island have a width smaller than seven feet, exclusive of curb. Tree specifications shall adhere to those listed in Section 4.6.16(E)(5) and 4.6.16(E)(6). Minimum tree height shall be increased to 18 feet in overall height with an eight-foot spread if the option to increase the number of parking spaces between landscape islands is chosen. [Amd. Ord. 6-12 2/21/12]
2.
Unobstructed cross-visibility shall be maintained at all terminal landscape islands where it intersects a right-of-way. Clear visibility shall be maintained between three feet to six feet above ground. Proper plant selection shall be utilized that fully accounts for the mature height and spread of that plant. The proper design shall have low groundcovers within the nose of the island with small shrubs located at the back end of the island. [Amd. Ord. 6-12 2/21/12]
(j)
Each row of parking spaces shall be terminated by landscape islands with dimensions as indicated above. An exception to this requirement is when a landscaped area, with the dimensions above, exists at the end of the parking row. [Amd. Ord. 6-12 2/21/12]
(k)
Whenever parking tiers abut, they shall be separated by a minimum five-foot wide landscape strip. This strip shall be in addition to the parking stall and be free of any vehicular encroachment, including car overhang. In addition, a two-foot hedge shall be installed within this landscape strip and run the entire length of the strip. Pedestrian walkways are permitted to allow passage through the hedge. Nonmountable curbs are not required for these landscaping strips, providing carstops are provided. [Amd. Ord. 6-12 2/21/12]
(l)
Perimeter landscape strips which are required to be created by this code or requirements of the zoning code shall not be credited to satisfy any interior landscaping requirements, however, the gross area of perimeter landscape strips which exceed minimum requirements may be credited to satisfy the interior landscape requirements of this section.
(m)
Interior landscaping in both parking areas and other vehicular use areas shall, insofar as possible, be used to delineate and guide major traffic movement within the parking area so as to prevent cross-space driving wherever possible. A portion of the landscaping for interior parking spaces, not to exceed 25 percent of the total requirement, may be relocated so as to emphasize corridors or special landscape areas within the general parking area or adjacent to buildings located on the site, if helpful in achieving greater overall aesthetic effect. Such relocated landscaping shall be in addition to the perimeter landscaping requirements.
(n)
Existing native soil within all landscape islands, interior landscape strips and perimeter landscape strips, adjacent to vehicular use areas, shall be excavated down to a depth of 30 inches below existing grade, except for a 12-inch buffer from the inside of curb or pavement (see diagram below). A suitable planting soil mixture of 50/50, 60/40 (sand/topsoil) or as otherwise indicated by the Registered Landscape Architect, shall either be backfilled in place of the native soil or efficiently mixed with the native soil to create an optimum environment for successful root development. If native soil is to be mixed, it shall first be screened to remove rocks and debris larger than one-half inch in diameter prior to mixing. All properties under this section shall be required to have an open landscape bed inspection prior to backfilling to insure the 30-inch depth has been met. [Amd. Ord. 6-12 2/21/12]
(o)
All air-conditioning units and other mechanical equipment and refuse areas whose height is five feet or less shall be screened with shrubbery that is tall enough to fully screen the units from view. Equipment five feet to 16 feet above grade shall be screened with hedges that are half of the height of the item to be screened. In such instances, the required hedge shall not be any less than five feet in height. Anything higher than 16 shall be screened with shrubbery that is a minimum of eight in height. [Amd. Ord. 6-12 2/21/12]
(p)
Landscaping may be permitted in easements only with the written permission of the easement holder. Written permission shall be submitted as part of the site plan or landscape plan review.
(4)
Foundation landscaping requirements. [Amd. Ord. 6-12 2/21/12]
(a)
Foundation landscaping shall be required. This shall incorporate trees, shrubs and groundcovers with the minimum required specifications as set forth in 4.6.16(E). Multiple tiers of plant material should be utilized and thoughtfully designed to accomplish the goal of softening the building mass while adding vibrant color and textures. [Amd. Ord. 6-12 2/21/12]
(b)
New multi-story structures or landscape improvements to existing multi-story structures shall adhere to the landscape requirements set forth in this section. The purpose of these requirements is to aesthetically and visually buffer larger structures and to maintain an appropriately scaled relationship between the height of the structure and its surrounding landscape.
(i)
Foundation trees with specifications listed in Table 1 shall be planted along the building façade that faces a Right-of-Way, except in the CBD zoning district where alternate landscaping configurations have been incorporated into the Frontage Standards in Section 4.4.13(E). [Amd. Ord. 03-15 02/24/2015]
(ii)
The spacing of these trees shall be determined based on the average canopy width of the proposed tree. These trees shall be spaced appropriately so that the canopies shall be touching at average maturity.
(iii)
Typical Foundation trees and spacing requirements are listed in Table 2. All trees listed in Table 2 are examples. Other species may be used so long as the spacing meets the intent of this section. [Amd. Ord. 6-12 2/21/12]
Table 1. Foundation Tree Specifications [Amd. Ord. 6-12 2/21/12]
Table 2. Typical Foundation Trees and Spacing Requirements [Amd. Ord. 6-12 2/21/12]
(5)
Special landscape regulations for properties within the Central Business District (CBD). [Amd. Ord. 6-12 2/21/12]
(a)
Landscape Islands shall be installed within designated On-Street Parking locations. Properties submitting for Site Plan Modifications that are designated as Class IV or higher are required to install on-street landscape islands. Site Plan Modifications that are classified as Class III or lower that are proposing on street landscape islands shall adhere to the requirements outlined in this section. All islands are to be curbed with Type 'F' curbing to protect plant material. There are three types of landscape islands found within designated on-street parking sites. They are Intersection Islands, Driveway Islands and Parallel Parking Islands. [Amd. Ord. 6-12 2/21/12]
1.
Intersection Islands are required at the corners of intersecting streets. These islands shall be a minimum of ten feet in length. One palm tree and associated understory plantings shall be located in each island and shall not pose a hazard to site visibility. If applicable, each palm shall be located behind traffic signs. Species and size to be consistent with those existing within adjacent on-street parking islands. [Amd. Ord. 6-12 2/21/12]
2.
Driveway Islands are required on each side of the driveway apron leading into the property. These islands shall be a minimum of eight feet in length. One accent tree or palm and associated understory plantings shall be located in each island and shall not pose a hazard to site visibility. Species and size to be consistent with those existing within adjacent on-street parking islands. [Amd. Ord. 6-12 2/21/12]
3.
Parallel Parking Islands shall be used to break up large expanses of pavement utilizing shade-producing canopy trees and associated understory plantings. No more than six parallel parking spaces are allowed between the nearest parallel parking island and the subject property submitting for a Site Plan Modification. Spaces will be counted from the nearest street intersection. Each island shall be a minimum of 22 feet in length and contain at least one canopy tree and associated understory plantings. Species and size to be consistent with those existing within adjacent on-street parking islands.
Properties abutting Atlantic Avenue are exempt from the requirement of constructing on-street landscape islands. The maintenance and irrigating of islands shall be the sole responsibility of the property owner who is located adjacent to these islands. Construction of landscape islands shall not create traffic safety hazards. The utilization of root barriers will be required in instances where underground utilities are present. All compacted soil, rock and other debris shall be removed to a depth of 30 inches below top of curb and replaced with a 60/40 mixture of sand to topsoil.
Existing site conditions will be examined during the plan review process. Flexibility for location and size of islands will be considered in achieving the overall goal of creating a consistent and unified streetscape. [Amd. Ord. 6-12 2/21/12]
(6)
Street trees for new residential developments. [Amd. Ord. 6-12 2/21/12] A themed landscape is very important for creating unity and common character within residential developments. Street trees are an integral component of creating a themed landscape and shall be required as per this section. All trees shall be in accordance with Section 4.6.16(E)(5). Tree selection shall be approved by City Staff. One street tree shall be required for every 40 linear feet of street frontage with a minimum of one tree per property. Street trees shall be located between the inside edge of sidewalk and edge of road pavement. Typical spacing for some commonly used street trees are listed in the below chart. [Amd. Ord. 6-12 2/21/12]
(7)
Existing multiple family, duplex, commercial, and industrial development. All existing multi-family units, duplexes, and commercial and industrial uses shall comply with the minimum standards for landscaping as follows: [Amd. Ord. 22-96 5/21/96]
(a)
Provide for perimeter landscaping adjacent to public rights-of-way to screen vehicular parking, open-lot sales, service and storage areas to the extent physically possible and deemed feasible by the Landscape Compliance Review Committee. Elimination of parking spaces required by code will not be permitted to upgrade landscaping, however, the deletion of parking spaces in excess of code requirements will be required if they are in areas that will facilitate the required implementation of the minimum landscape requirements for existing development contained herein. [Amd. Ord. 22-96 5/21/96]
(b)
Provide sod and irrigation within the right-of-way between the property line and the edge of pavement of the adjacent travel lane. The removal of existing asphalt may be required within the area between the property line and the edge of pavement of the adjacent travel lane. [Amd. Ord. 22-96 5/21/96]
(c)
Provide screening for all dumpsters and refuse areas and all ground level air-conditioning units and mechanical equipment. Adequacy of screening shall be determined by the Landscape Compliance Review Committee. [Amd. Ord. 22-96 5/21/96]
(d)
Foundation landscaping shall be provided for building elevations that are visible from adjacent rights-of-way.
(8)
Sight distance. Sight distance for landscaping adjacent to rights-of-way and points of access shall be provided pursuant to Section 4.6.14.
(I)
Minimum maintenance requirements.
(1)
General. The owner or his agent shall be responsible for the maintenance of all landscaping required by ordinance or made a condition for approval for a building permit. Landscaping shall be maintained in a good condition so as to present a healthy, neat, and orderly appearance at least equal to that which was required for the original installation, and shall be kept free from refuse and debris. Maintenance is to include mowing, edging, weeding, shrub pruning, fertilization and inspection and repair of irrigation systems to ensure their proper functioning.
(2)
Yard waste management, composting and use of mulches. [Amd. Ord. 6-12 2/21/12]
(a)
Yard wastes shall not be disposed of or stored by shorelines, in ditches or swales, or near storm drains. [Amd. Ord. 6-12 2/21/12]
(b)
Composting of yard wastes provides many benefits and is strongly encouraged. The resulting materials are excellent soil amendments and conditioners. Other recycled solid wastes products are also available and should be used when appropriate. [Amd. Ord. 6-12 2/21/12]
(c)
Grass clippings are a natural benefit to lawns, replenishing nutrients drawn up from the soil and as an organic mulch that helps to retain moisture, lessening the need to irrigate. Grass clippings should be left on your lawn. All discharged clippings are to be kept far away from adjacent shorelines. [Amd. Ord. 6-12 2/21/12]
(d)
Mulches applied and maintained at appropriate depths in planting beds assist soils in retaining moisture, reducing weed growth, and preventing erosion. Mulch, applied at a layer of two inches thick, shall be specified on landscape plans. Mulches shall be kept six inches away from trunk. Mulch from invasive trees such as Melaleuca and Eucalyptus are highly recommended as a suitable mulching resource. [Amd. Ord. 6-12 2/21/12]
(3)
Pesticide management. [Amd. Ord. 6-12 2/21/12] (Ord. No. 28-24, § 2, 11-4-24)
(a)
All landscape applications of pesticides, including Weed and Feed products, should be made in accordance with State and Federal Law and with the most current version of the Florida-friendly Best Management Practices for Protection of Water Resources by the Green Industries. [Amd. Ord. 6-12 2/21/12]
(b)
Property owners and landscape management companies performing pesticide control within the City are strongly encouraged to use Integrated Pest Control (IPC). Biological control is a natural and effective means of eradicating unwanted pests within a landscape. It has relatively little impact on the environment and prevents the unnecessary use of chemicals. [Amd. Ord. 6-12 2/21/12]
(c)
When using pesticides, all label instructions are state and federal law and must be adhered to. [Amd. Ord. 6-12 2/21/12]
(4)
Pruning of trees. Maintenance pruning of trees is to allow for uniform healthy growth. Trees shall be allowed to attain their normal size, and at a minimum attain a 20-foot spread of canopy, prior to any pruning except in conjunction with the removal of diseased limbs, or to remove limbs or foliage that present a hazard to power lines or structures. Lower branches and suckers must be selectively removed to provide a minimum of six feet of clear trunk. Severely cutting back lateral branches and canopy, or "hatracking" is expressly prohibited. Trees may be periodically thinned in order to reduce the leaf mass in preparation for tropical storms. All pruning shall be accomplished in accordance with the National Arborist's Standards. A tree's habit of growth must be considered before planting to prevent conflicts with view or signage and such a conflict shall not of itself necessarily permit the pruning or removal of a tree. (Ord. No. 28-24, § 2, 11-4-24)
(J)
Fertilizer Management. (Ord. No. 28-24, § 3, 11-4-24)
(1)
Purpose and intent. The Florida Department of Environmental Protection has determined that certain water bodies within Palm Beach County are impaired by excessive nutrient levels associated with improper Fertilizer use. This section adopts Best Management Practices for Fertilizer use from the most recent edition of the "Florida-Friendly Best Management Practices for Protection of Water Resources by the Green Industries" in compliance with Section 403.067, Florida Statutes. (Ord. No. 28-24, § 3, 11-4-24)
(2)
Applicability. These regulations shall be applicable to and shall regulate any and all Applicators of Fertilizer and areas of Application of Fertilizer to Urban Landscapes within the City of Delray Beach, unless such Application is specifically exempted by Subsection (9). (Ord. No. 28-24, § 3, 11-4-24)
(3)
Definitions. The following definitions apply to Section 4.6.16(J): (Ord. No. 28-24, § 3, 11-4-24)
Application, Apply, or Applying. The actual physical deposit of Fertilizer to Turf or Landscape Plants. (Ord. No. 28-24, § 3, 11-4-24)
Applicator. Any person who Applies Fertilizer on Turf and/or Landscape Plants in the City of Delray Beach. (Ord. No. 28-24, § 3, 11-4-24)
Approved Test. A soil test from the University of Florida or other commercial laboratory licensed to perform soil testing. (Ord. No. 28-24, § 3, 11-4-24)
Best Management Practices (BMPs). Turf and landscape practices or combination of practices based on research, field-testing, and expert review, determined to be the most effective and practical site-specific means, including economic and technological considerations, for improving water quality, conserving water supplies, and protecting natural resources. (Ord. No. 28-24, § 3, 11-4-24)
Commercial Fertilizer Applicator. Except as provided in Section 482.1562(9), Florida Statutes, any person who Applies Fertilizer for money, goods, services, or other valuable consideration. (Ord. No. 28-24, § 3, 11-4-24)
Fertilizer. Any substance or mixture of substances, except pesticide/fertilizer mixtures such as "weed and feed" products, that contains one or more recognized plant nutrients and promotes plant growth, or controls soil acidity or alkalinity, or provides other soil enrichment. or provides other corrective measures to the soil. (Ord. No. 28-24, § 3, 11-4-24)
Fertilizing or Fertilization. The act of Applying Fertilizer to Turf, specialized turf, or Landscape Plants. (Ord. No. 28-24, § 3, 11-4-24)
Institutional Applicator. Any person, other than a private, non-commercial or a commercial Applicator (unless such definitions also apply under the circumstances), that Applies Fertilizer for the purpose of maintaining Turf and/or Landscape Plants. Institutional Applicators shall include, but shall not be limited to, owners, managers, or employees of public lands, schools, parks, religious institutions, utilities, industrial or business sites, and any residential properties maintained in condominium and/or common ownership. (Ord. No. 28-24, § 3, 11-4-24)
Landscape Plant. Any native or non-native tree, shrub, or groundcover (excluding Turf). (Ord. No. 28-24, § 3, 11-4-24)
Low Maintenance Zone. A minimum ten-foot wide area adjacent to water courses that is planted and managed in order to minimize the need for Fertilization, watering, mowing, etc. (Ord. No. 28-24, § 3, 11-4-24)
Pasture. Land managed for livestock grazing. (Ord. No. 28-24, § 3, 11-4-24)
Prohibited Application Period. The time period during which a flood watch or warning, a tropical storm watch or warning, or a hurricane watch or warning is in effect for any portion of the City of Delray Beach, issued by the National Weather Service, or if heavy rain (two inches or more within a 24-hour period) is likely. (Ord. No. 28-24, § 3, 11-4-24)
Saturated Soil. Soil in which the voids are filled with water. Saturation does not require flow. Soils shall be considered saturated if standing water is present or the pressure of a person standing on the soil causes the release of free water. (Ord. No. 28-24, § 3, 11-4-24)
Turf or Lawn. An area of grass-covered soil held together by the roots of the grass. (Ord. No. 28-24, § 3, 11-4-24)
Urban Landscape. Pervious areas on residential, commercial, industrial, institutional, highway rights-of-way, or other nonagricultural lands that are planted with Turf or Landscape Plants. Agriculture has the same meaning as provided in Section 570.02, Florida Statutes. (Ord. No. 28-24, § 3, 11-4-24)
(4)
Timing of Fertilizer applications. (Ord. No. 28-24, § 3, 11-4-24)
(a)
Fertilizer containing nitrogen and/or phosphorus shall not be Applied before seeding or sodding a site and shall not be Applied for the first 30 days after seeding or sodding, except when hydro-seeding for temporary or permanent erosion control in an emergency situation (wildfire, etc.), or in accordance with the stormwater pollution prevent plan for that site. (Ord. No. 28-24, § 3, 11-4-24)
(b)
No Applicator shall Apply Fertilizers containing nitrogen and/or phosphorus to Turf and/or Landscape Plants during a Prohibited Application Period or to Saturated Soils. (Ord. No. 28-24, § 3, 11-4-24)
(5)
Fertilizer free zones. Fertilizer shall not be Applied within ten feet, or three feet if a deflector shield or drop spreader is used, of any pond, stream, water body, lake, canal, or wetland as defined by the Florida Department of Environmental Protection, Chapter 62-340, Florida Administrative Code, or from the top of a seawall or lake bulkhead. Newly planted Turf or Landscape Plants may be Fertilized in this zone only for a 60-day period beginning 30 days after planting, if needed, to allow the vegetation to become well established. Caution shall be used to prevent direct deposition of Fertilizer into the water. (Ord. No. 28-24, § 3, 11-4-24)
(6)
Low Maintenance Zones. A voluntary ten-foot Low Maintenance Zone is strongly recommended, but not mandated, from any pond, stream, water course, lake, wetland or from the top of a seawall. A swale/berm system is recommended for installation at the landward edge of the Low Maintenance Zone to capture and filter runoff. If more stringent City of Delray Beach Code regulations apply, this Provision does not relieve the requirement to adhere to the more stringent regulations. No mowed or cut vegetative material may be deposited or left remaining in this Zone or deposited in the water. Care should be taken to prevent the over-spray of aquatic weed products in this Zone. (Ord. No. 28-24, § 3, 11-4-24)
(7)
Fertilizer content and application rates. (Ord. No. 28-24, § 3, 11-4-24)
(a)
Fertilizers Applied to Turf shall be Applied in accordance with requirements and directions provided by Rule 5E-1.003(2), Florida Administrative Code. "Labeling Requirements for Urban Turf Fertilizers". Under Rule 5E-1.003(2), Florida Administrative Code, required Application rate and frequency maximums, which vary by plant and Turf types, are found on the labeled Fertilizer bag or container. (Ord. No. 28-24, § 3, 11-4-24)
(b)
Nitrogen or phosphorus Fertilizer shall not be Applied to Turf or Landscape Plants except as provided in Subsection (7)(a) above for Turf, or in the University of Florida Institute of Food and Agricultural Sciences (UF/IFAS) recommendations for Landscape Plants, vegetable gardens, and fruit trees and shrubs, unless a soil or tissue deficiency has been verified by an Approved Test. (Ord. No. 28-24, § 3, 11-4-24)
(c)
Fertilizers used at golf courses shall be Applied in accordance with the recommendations in "Best Management Practices for the Enhancement of Environmental Quality on Florida Golf Courses", published by the Florida Department of Environmental Protection, dated January 2007, as may be amended. Fertilizers used at parks or athletic fields shall be Applied in accordance with Rule 5E-1.003(2), Florida Administrative Code. (Ord. No. 28-24, § 3, 11-4-24)
(8)
Fertilizer application practices. (Ord. No. 28-24, § 3, 11-4-24)
(a)
Spreader deflector shields shall be used when Fertilizing via rotary (broadcast) spreaders. Deflectors must be positioned such that Fertilizer granules are deflected away from all impervious surfaces, fertilizer-free zones and water bodies, including wetlands. Any Fertilizer applied, spilled, or deposited, either intentionally or accidentally, on any impervious surface shall be immediately and completely removed to the greatest extent practicable. (Ord. No. 28-24, § 3, 11-4-24)
(b)
Fertilizer released on an impervious surface must be immediately contained and either legally applied to Turf or any other legal site, or returned to the original or other appropriate container. (Ord. No. 28-24, § 3, 11-4-24)
(c)
In no case shall Fertilizer be washed, swept, or blown off impervious surfaces into storm water drains, ditches, conveyances, or water bodies. (Ord. No. 28-24, § 3, 11-4-24)
(d)
Property owners and managers are encouraged to use an integrated pest management strategy as currently recommended by the University of Florida Cooperative Extension Service Publications and to utilize the plant selection and landscape design standards of the UF/IFAS Florida-Friendly Landscape Program. (Ord. No. 28-24, § 3, 11-4-24)
(9)
Management of grass clippings and vegetative matter. In no case shall grass clippings, vegetative material, and/or vegetative debris intentionally be washed, swept, blown, or otherwise deposited onto or into stormwater drains, drainage ditches or conveyances, water bodies, wetlands, sidewalks or roadways. Any material that is accidentally deposited shall be immediately removed to the maximum extent practicable and disposed of in accordance with applicable codes and regulations. (Ord. No. 28-24, § 3, 11-4-24)
(10)
Exemptions. The requirements in Section 4.6.16(J) shall not apply to: (Ord. No. 28-24, § 3, 11-4-24)
(a)
Bona fide farm operations as defined in the Florida Right to Farm Act, Section 823.14 Florida Statutes; (Ord. No. 28-24, § 3, 11-4-24)
(b)
Other properties not subject to or covered under the Florida Right to Farm Act that have Pastures used for grazing livestock; or (Ord. No. 28-24, § 3, 11-4-24)
(c)
Any lands used for bona fide scientific research, including, but not limited to, research on the effects of Fertilizer use on urban stormwater, water quality, agronomics, or horticulture. (Ord. No. 28-24, § 3, 11-4-24)
(11)
Training. (Ord. No. 28-24, § 3, 11-4-24)
(a)
All commercial and Institutional Applicators of Fertilizer within the City of Delray Beach shall abide by and successfully complete the six-hour training program as described in the "Florida-Friendly Best Management Practices for Protection of Water Resources by the Green Industries" offered by the Florida Department of Environmental Protection through the University of Florida/Palm Beach County Cooperative Extension Service Florida-Friendly Landscapes Program or an equivalent program acceptable to the City. (Ord. No. 28-24, § 3, 11-4-24)
(b)
Non-commercial and non-Institutional Applicators not otherwise required to be certified, such as private citizens on their own residential property, are encouraged to follow the recommendations of the UF/IFAS "Florida-Friendly Landscape Program" and label instructions when Applying Fertilizers. (Ord. No. 28-24, § 3, 11-4-24)
(12)
Licensing of Commercial Applicators. (Ord. No. 28-24, § 3, 11-4-24)
(a)
All businesses Applying Fertilizer to Turf or Landscape Plants (including, but not limited to, residential Lawns, golf courses, commercial/industrial properties, and multi-family and condominium properties) must ensure that the business owner or designee holds the appropriate "Florida-Friendly Best Management Practices for Protection of Water Resources by the Green Industries" training certificate prior to the business owner obtaining a local business tax certificate. Owners for any category of occupation which may Apply any Fertilizer to Turf and/or Landscape Plants shall provide proof of completion of the Program to the City of Delray Beach business tax office. It is the responsibility of the business owner to maintain the "Florida-Friendly Best Management Practices for Protection of Water Resources by the Green Industries" certificate to receive their business tax receipt annually. (Ord. No. 28-24, § 3, 11-4-24)
(b)
After December 31, 2024, all Commercial Applicators of Fertilizer within the City shall have and carry in their possession at all times when Applying Fertilizer, evidence of certification by the Florida Department of Agriculture and Consumer Services as a Commercial Fertilizer Applicator per Rule 5E-14.117(11), Florida Administrative Code. (Ord. No. 28-24, § 3, 11-4-24)
(c)
All businesses Applying Fertilizer to Turf and/or Landscape Plants (including, but not limited to, residential Lawns, golf courses, commercial/industrial properties, and multi-family and condominium properties) must ensure that at least one employee has an appropriate "Florida-Friendly Best Management Practices for Protection of Water Resources by the Green Industries" training certificate prior to the business owner obtaining a business tax receipt. (Ord. No. 28-24, § 3, 11-4-24)
(13)
Enforcement. The requirements of this section shall be enforced by the City of Delray Beach Code Enforcement Board or Special Magistrate pursuant to the authority granted by Section 162.01, Florida Statutes, as may be amended, and the City of Delray Beach Code of Ordinances. (Ord. No. 28-24, § 3, 11-4-24)
(14)
Penalties. Violations of any of the provisions of this Section shall be punishable as set forth in Section 10.99 of this Code. (Ord. No. 28-24, § 3, 11-4-24)
[Amd. Ord. 2-01 1/16/01]
(A)
Purpose. The purpose of this Section is to provide standards and procedures, and to prescribe techniques and methods for the control of site erosion resulting from land-disturbing activities. [Amd. Ord. 2-01 1/16/01]
(B)
Applicability. These regulations apply to any project which involves the disturbance of land in connection with land development, such land-disturbing activities shall include, but not be limited to land clearing, grading, filling, and excavation, construction of buildings, utilities, paving and drainage facilities, demolition, and any other land-disturbing process other than for agricultural purposes. [Amd. Ord. 2-01 1/16/01]
(C)
Erosion control standards. The following site erosion control standards and procedures shall apply to all land-disturbing activities: [Amd. Ord. 2-01 1/16/01]
(1)
All site erosion and sediment control methods to be employed during construction shall be noted on the plans and included in a Pollution Prevention Plan submitted to the City for a building permit, right-of-way work permit, subdivision improvement, project involving clearing of property of shrub vegetation, and any other land-disturbing activity which requires a permit or approval by the city. A separate permit shall not be required for site erosion and sediment control, but it shall be a condition of approval of any permit received for building and construction. [Amd. Ord. 2-01 1/16/01]
(a)
Activities approved by the building permit shall be conducted in a manner which does not cause violations of state and federal water quality standards. The permittee shall implement Best Management Practices for erosion and pollution control to prevent violation of state water quality standards. Temporary erosion control shall be implemented prior to and during construction, and permanent control measures shall be completed within seven days of any construction activity. Turbidity barriers shall be installed and maintained at all locations where the possibility of transferring suspended solids into the receiving waterbody exists due to the permitted work. Turbidity barriers shall remain in place at all locations until construction is completed and soils are stabilized and vegetation has been established. Silt screens, hay bales, or other such sediment control measures shall be utilized during construction. The selected sediment control measures shall be installed landward of the upland buffer zones around all protected wetlands. All areas shall be stabilized and vegetated immediately after construction to prevent erosion into the wetlands and upper buffer zones. All practices shall be in accordance with the guidelines and specifications in the Florida Stormwater, Erosion and Sedimentation Control Inspectors Manual, or latest edition, on file with the City of Delray Beach's Chief Building Official. [Amd. Ord. 2-01 1/16/01]
(2)
The developer/owner shall be required to comply with the State Ambient Air Quality Standards, in accordance with Florida Administrative Code Chapter 17-2, Unconfined Emissions, which specifies standards for air quality.
(D)
Erosion and sediment control methods. [Amd. Ord. 2-01 1/16/01]
(1)
In connection with any land-disturbing activity, provision shall be made to control site erosion. Site erosion is considered to occur when material is carried beyond the site on which such land-disturbing activity is taking place, and is thus deemed to be a public nuisance with respect to the surrounding private properties and public areas. [Amd. Ord. 2-01 1/16/01]
(2)
During such land-disturbing activity, the developer/owner shall be required to control the site erosion by any means necessary to contain the soil, dust, and sediments within the project site. These methods may include, but are not limited to, the following: leaving a buffer strip of land around the perimeter of the site if the existing vegetation is sufficient to stop the site erosion, the construction of a silt fence around the entire site, covering loose fill material with fabric or other covering, and wetting down the loose material with moisture emulsions specific for that purpose. [Amd. Ord. 2-01 1/16/01]
(3)
Prior to and during construction of all sites, the permittee and/or responsible party shall implement and maintain all erosion and sediment control measures (Best Management Practices) included in the Pollution Prevention Plan, required to retain sediment on-site and to prevent violations of state and federal water quality standards. All practices shall be in accordance with the guidelines and specifications in the Florida Stormwater, Erosion and Sedimentation Control Inspectors manual, or latest edition, on file with the City of Delray Beach's Chief Building Official. [Amd. Ord. 2-01 1/16/01]
(4)
After the conclusion of the land-disturbing activity, no disturbed area may be left denuded, and every disturbed area must be covered by mulches such as straw, hay, filter fabric, seed and mulch, sod, or other approved material to the extent necessary to cover otherwise denuded areas, unless the City Engineer determines that the circumstances do not require such covering. Within 60 days after final grade is established on any portion of a project site, that portion of the site shall be provided with established permanent soil stabilization measures according to the original construction plan, whether by impervious surface or landscaping. [Amd. Ord. 2-01 1/16/01]
(5)
The permittee and/or responsible party shall correct any erosion that causes adverse impacts to water resources. Sediment accumulation in the stormwater system from construction activities must be removed at the cost of the permittee to prevent a loss of storage volume. [Amd. Ord. 2-01 1/16/01]
(6)
Construction sites that discharge directly or indirectly to a Municipal Separate Storm Sewer System (MS4) must have a Pollution Prevention Plan on-site at all times. [Amd. Ord. 2-01 1/16/01]
(A)
Minimum requirements.
(1)
The requirements contained in this Section are minimum aesthetic standards for all site development, buildings, structures, or alterations except for single family development.
(2)
It is required that all site development, structures, buildings, or alterations to same, show proper design concepts, express honest design construction, and be appropriate to surroundings.
(B)
Building and structure requirements.
(1)
Buildings or structures which are a part of a present or future group or complex shall have a unity of character and design. The relationship of forms and the use, texture, and color of materials shall be such as to create a harmonious whole. When the area involved forms an integral part of, is immediately adjacent to, or otherwise clearly affects the future of any established section of the City, the design, scale and location on the site shall enhance rather than detract from the character, value, and attractiveness of the surroundings.
(2)
Buildings or structures located along strips of land or on single sites, and not a part of a unified multi-building complex, shall strive to achieve visual harmony with the surroundings. If they are built in undeveloped areas, the three primary requirements shall be met: express honest design construction, show proper design concepts, and be appropriate to the City.
(3)
All facades visible to public or adjacent property shall be designed to create a harmonious whole. Materials shall express their function clearly and not appear as a material foreign to the rest of the building.
(4)
To be harmonious, it is not to be inferred that buildings must look alike or be of the same style. Harmony can be achieved through the proper consideration of scale, proportion, site planning, landscaping, materials, and color.
(5)
Look-alike buildings are not allowed unless, in the opinion of the Site Plan Review and Appearance Board or the Historic Preservation Board, there is sufficient separation to preserve the aesthetic character of the present of evolving neighborhood. This is not to be construed to prohibit duplication of floor plans and exterior treatment in a planned development where, in the opinion of the Board, the aesthetics of the development depend upon, or are enhanced by the look-alike buildings and their relationship to each other. [Amd. Ord. 21-04 5/4/04]
(6)
Buildings, which are of symbolic design for reasons of advertising, unless otherwise compatible with the criteria herein, will not be approved by this Board. Symbols attached to buildings will not be allowed unless they are secondary in appearance to the building and landscape and are an aesthetic asset to the building project and neighborhood.
(7)
Exterior lighting may be used to illuminate a building and its grounds for safety purposes, but in an aesthetic manner. Lighting is not to be used as a form of advertising in a manner that is not compatible to the neighborhood or in a manner that draws considerably more attention to the building or grounds at night than in the day. Lighting following the form of the building or part of the building will not be allowed if, in the opinion of the Board, the overall effect will be garish or detrimental to the environment. All fixtures used in exterior lighting are to be selected for functional aesthetic value.
(8)
Building surfaces, walls, and roofs that are considered garish by the Board will be denied approval.
(9)
"Take-out" or "pick-up" windows or doors shall not be located on a building facade that faces a public right-of-way, unless they are designed in a manner as to be an aesthetic asset to the building and neighborhood. [Amd. Ord. 21-04 5/4/04]
(10)
All exterior forms, attached or not to buildings, shall be in conformity to, and secondary to, the building. They shall be an asset to the aesthetics of the site and to the neighborhood.
(11)
All telephones, vending machines, or any facilities dispensing merchandise, or a service on private property, shall be confined to a space built into the building or buildings or enclosed in a separate structure compatible with the main building.
(12)
Gasoline stations.
(a)
Symbolic color of the exterior facades or roofs may not be used unless they are harmonious with the atmosphere of the neighborhood and the city.
(b)
Exterior display of goods for sale or displays designating a service will not be allowed, except that a display of goods and tools of a service may be displayed on the pump island, provided the island is not considered by the Site Plan Review and Appearance Board or Historic Preservation Board to be enlarged to take advantage of this provision, and provided the goods and tools be such that they can be used or installed at the island. For example: An oil rack is acceptable, but a tire display is not. [Amd. Ord. 21-04 5/4/04]
(13)
Outbuildings and shopping centers.
(a)
Rule. Outbuildings within a shopping center shall be compatible in terms of color, materials, and architectural style.
(b)
Procedure. The Site Plan Review and Appearance Board shall make a finding of such compatibility prior to approval of outbuilding elevations. If the Board determines that there is not compatibility with respect to any of the items, then it shall deny the elevations. However, if the Board feels, despite the incompatibility, the elevations should be approved they shall forward the elevations to the City Commission with a recommendation of approval and the City Commission shall take final action.
(14)
Architectural features and building structures constructed or placed above the roof, such as stair towers, restroom facilities, and elevator overruns, shall be incorporated into the overall building design and shall be consistent with the architectural style. (Ord. No. 02-21, § 4, 3-2-21)
(15)
Flat roofs shall be screened from the lateral view of adjacent properties by a parapet. New or replacement rooftop appurtenances, including mechanical equipment, shall be screened by a parapet, enclosure, or other method equal in height to the appurtenance. The screening must be integrated and compatible with the building architecture. (Ord. No. 02-21, § 4, 3-2-21)
(C)
Exterior space. The scale of exterior space is to be relative to its neighborhood, adjacent properties, buildings, access (roads and pedestrian routes), and its activity. Building facades enclosing a space must be harmonious. Where, because of their use or age, like facades are not possible, consideration should be given to unifying the walls of the space by the application of landscaping, or man-made objects of like design, at modular spacing. The floor of a space is of primary importance. Its materials, texture, and color, contour, and shadow on it are to be considered, not only in relation to the space, but to its setting. Careful consideration shall be given to the preservation of natural vistas and to the future development of vistas which open into undeveloped areas.
(D)
Parking lots and vehicular use areas.
(1)
Parking lots and other vehicular use areas are to be designed as an aesthetic asset to a neighborhood and to the building, group of buildings, or facility they serve. A parking lot is to be considered an outside, transitional space which is located between the access (such as roads) and the building, group of buildings, or other outside spaces, which it serves. The parking lot, because it is viewed from above as well as at eye level, should be designed accordingly.
(2)
Parking lots, vehicular use areas, and their parked vehicles are to be effectively screened from the public view and from adjacent property in a manner that is attractive and compatible with safety, the neighborhood, and facilities served.
(3)
The atmosphere within the parking lot and vehicular use area is to be park-like, rather than the harsh hardstand of paving. Trees are of primary importance in the landscape. They are not to be minimized in either height or quantity. The tree imparts, especially in a relatively flat area, a sense of three-dimensional space. It casts shadows that reduce the monotony of the expanse of paving and creates a refuge from the tropical sun. Signs designating entrances, exits, and regulations are to be of a tasteful design and subject to review by the Site Plan Review and Appearance Board or the Historic Preservation Board. The pavement is to be more than wall-to-wall asphalt. [Amd. Ord. 21-04 5/4/04]
(4)
It is recommended that pavement be varied in texture or color designating lanes for automobile traffic, pedestrian walks, and parking spaces. Bright-colored pavement is to be used only with restraint. In order to create a pleasant atmosphere, it is recommended that consideration be given to sculpture, fountains, gardens, pools, and benches. Design emphasis is to be given to the entrances and exits to the lot. Trash, refuse, and unaesthetic storage and mechanical equipment should be screened from the parking lot.
(5)
Lighting is to be designed not only from the standpoint of safety and resistance to vandalism, but for visual effect. It should avoid any annoyance to the neighbors from brightness or glare. It should not impart a prison-like atmosphere. Low lights of a modest scale can be used along with feature lighting emphasizing plants, trees, barriers, entrances, and exits. The fixtures are to be selected not only for their functional value, but for their aesthetic qualities. They are to be considered furniture of the parking lot visible both day and night.
(E)
Criteria for board action. The following criteria shall be considered, by the Site Plan Review and Appearance Board or Historic Preservation Board, in the review of plans for building permits. [Amd. Ord. 21-04 5/4/04]
If the following criteria are not met, the application shall be disapproved.
(1)
The plan or the proposed structure is in conformity with good taste, good design, and in general, contributes to the image of the City as a place of beauty, spaciousness, harmony, taste, fitness, broad vistas, and high quality.
(2)
The proposed structure, or project, is in its exterior design and appearance of quality such as not to cause the nature of the local environment or evolving environment to materially depreciate in appearance and value.
(3)
The proposed structure, or project, is in harmony with the proposed developments in the general area, with the Comprehensive Plan, and with the supplemental criteria which may be set forth for the Board from time to time.
(A)
Purpose. The purpose of this section is to promote the public health, safety and general welfare and to encourage the preservation, protection, enforcement, and maintenance of trees. Through maintaining and enhancing their canopy, trees contribute to making cities sustainable by: providing food and securing nutrition, increasing natural biodiversity, housing wildlife, mitigating climate change, cooling the air, filtering pollutants, improving physical and mental health, reducing storm water runoff, reducing carbon emissions and increasing property values. (Ord. No. 19-17, § 1, 8-2-17)
(B)
Applicability. This section shall apply to all improved and unimproved properties within the City, including single family homes and duplexes. (Ord. No. 19-17, § 1, 8-2-17)
(C)
Compliance, enforcement and relief. (Ord. No. 19-17, § 1, 8-2-17)
(1)
Compliance. (Ord. No. 19-17, § 1, 8-2-17)
(a)
Prior to the issuance of a landscape permit or a building permit for a structure, a paving permit, or site permit for infrastructure installation, compliance with the requirements of this section shall be assured through the review and approval of a landscape plan submitted pursuant to Section 2.4.3(C) and 4.6.16. (Ord. No. 19-17, § 1, 8-2-17)
(b)
Prior to any tree removal or land clearing operation, a Vegetation Removal Permit per Sec. 4.6.19(E), must be submitted and approved. (Ord. No. 19-17, § 1, 8-2-17)
(2)
Enforcement. Violations of this section that are deemed to be public nuisances under Chapter 100 of the Code of Ordinances may be enforced in accordance with all remedies and alternative remedies provided under Chapter 100. Violations may also be enforced by the Code Enforcement Board, County Court Citation, a Notice to Appear, and/or any other means available under state or federal law, inclusive. (Ord. No. 19-17, § 1, 8-2-17)
(D)
Preservation and promotion of existing trees and palms. To the fullest extent practicable, all development proposals (land development application or building permits) must provide for the protection of existing trees having a trunk four inch or greater diameter measured at four and one-half feet above grade (Diameter at Breast Height "DBH") and palms having a Clear Trunk (CT) of eight feet or more. (See Appendix "A" Definitions) Concurrent with a land development application, a Tree Disposition Plan shall be required, displaying the location, diameter, species, condition, and disposition of all trees greater than four inches DBH and palms greater than eight feet CT and shall illustrate all new development in relation to the existing condition of the site. The Tree Disposition Plan shall identify trees and palms to be preserved, relocated, and removed. Tree and palm protection and relocation measures shall be specified on the plan, as well as mitigation calculations (i.e. In Lieu Fees). The Tree Disposition Plan, including the relocation measures and mitigation (including transport methods, watering details, etc.), shall be subject to review by the approving body, as a part of the development proposal's landscape plan, and may be approved, denied, or approved with conditions. (Ord. No. 19-17, § 1, 8-2-17; Ord. No. 10-23, § 3, 9-5-23)
(1)
Preservation of native plant communities. All existing native plant communities on sites proposed for development shall be preserved where possible through incorporation into the site design. Existing plant communities that are specified to remain shall be preserved to the greatest extent possible with trees, understory, and ground covers left intact and undisturbed, except for the eradication of prohibited and/or invasive plant species. In addition, stands of trees with or without understory plantings shall also be preserved. (Ord. No. 19-17, § 1, 8-2-17; Ord. No. 10-23, § 3, 9-5-23)
(2)
Preservation of trees. To the fullest extent possible, trees are to be preserved on site and protected from damage during the construction process. The Development Services Director, or designee, shall have the authority to require the preservation of trees on site and condition the approval of the development to incorporate existing trees into the site design. To accommodate the site development scenarios conducive to preserving trees, the City will consider flexible site design options. Proposed flexible site design options will be considered on a case-by-case basis and are subject to review and approval by the Historic Preservation Board (HPB) or Site Plan Review and Appearance Board (SPRAB), as appropriate. Trees designated for preservation that do not survive shall be replaced by a tree of equal DBH size or an equivalent number of trees with the total trunk DBH equal to the DBH size of the perished tree(s). Palms designated for preservation that do not survive shall be replaced by one palm of equal overall height for each perished palm. Replacements shall be the same species or an alternate species approved by the City. (Ord. No. 19-17, § 1, 8-2-17; Ord. No. 10-23, § 3, 9-5-23)
(3)
Relocation of trees and palms. If tree preservation is not feasible, trees and palms must be relocated on site. If tree relocations severely restrict the use of the property, then trees and palms may be relocated off-site to a location approved by the City. To determine feasibility of relocation, a written report from a certified arborist, per Section 4.6.19(E)(2)(C), must be submitted with the land development application, as well as the arborist's assessment of relocation. (Ord. No. 19-17, § 1, 8-2-17)
Trees designated for relocation that do not survive shall be replaced by a tree of equal DBH size or an equivalent number of replacement trees with the total trunk caliper size equal to the total DBH size of the perished tree(s) as required by Section 4.6.16. Palms designated for relocation that do not survive shall be replaced by one palm of equal overall height for each perished palm. (Ord. No. 19-17, § 1, 8-2-17; Ord. No. 10-23, § 3, 9-5-23)
(4)
Tree and palm removal. A tree may be removed only when an applicant has demonstrated that the proposed development will preclude preservation of trees in place and that relocation of trees is not feasible either on or off-site. Tree removal requires the issuance of a Vegetation Removal Permit. All trees removed must be mitigated per Section 4.6.19(E)(5). (Ord. No. 19-17, § 1, 8-2-17)
(E)
Vegetation removal. (Ord. No. 19-17, § 1, 8-2-17; Ord. No. 10-23, § 3, 9-5-23)
(1)
Permit required. It shall be unlawful for any person, without first obtaining a permit, to remove, cause to be removed, or effectively remove through damaging any tree, having a DBH of four inches. (Ord. No. 19-17, § 1, 8-2-17)
(a)
No Vegetation Removal Permit shall be issued for a property until the proposed development plan has received site plan approval, if required. Application for a Vegetation Removal Permit may commence only after the site plan and corresponding landscape plan has been approved and the building permit and mitigation fees have been paid. (Ord. No. 19-17, § 1, 8-2-17)
(b)
Single family homes and duplexes located within a historic overlay district or individually designated as historic properties shall follow the planning and zoning process as provided in the Land Development Regulations. The Vegetation Removal Permit will be reviewed with the entire permit package, per Sections 4.6.16 and 4.6.19(E)(2)(a) through (e). (Ord. No. 19-17, § 1, 8-2-17; Ord. No. 10-23, § 3, 9-5-23)
(c)
For all single family homes and duplexes not located in a historic overlay district or individually designated as historic, the Vegetation Removal Permit will be administratively reviewed by City Staff along with the proposed building and landscape plans, per Sections 4.6.16 and 4.6.19(E)(2)(f). (Ord. No. 19-17, § 1, 8-2-17; Ord. No. 10-23, § 3, 9-5-23)
(2)
Permit application information required. The following information and documentation must be provided with the Vegetation Removal Permit application: (Ord. No. 19-17, § 1, 8-2-17)
(a)
A copy of the approved site/landscape plan showing the location of proposed or existing driveways, parking and structures on the site. (Ord. No. 19-17, § 1, 8-2-17)
(b)
A tree survey for all projects, including single family homes and duplexes within the historic or beach overlay districts. (Ord. No. 19-17, § 1, 8-2-17; Ord. No. 10-23, § 3, 9-5-23)
(c)
For development applications, a condition assessment for all trees performed by a certified arborist that describes the condition percentage rating of the tree, makes note of hazardous trees and identifies trees that are a threat to endanger structures, pavement, and/or utilities. Trees identified for relocation will require a written assessment of transplant feasibility. (Ord. No. 19-17, § 1, 8-2-17; Ord. No. 10-23, § 3, 9-5-23)
(d)
Designation of the disposition of all trees proposed for preservation, relocation, or removal, presented on a Tree Disposition Plan. (Ord. No. 19-17, § 1, 8-2-17; Ord. No. 10-23, § 3, 9-5-23)
(e)
Any proposed grade changes which might adversely affect or endanger any trees on the site with specifications as to how to maintain such endangered trees. (Ord. No. 19-17, § 1, 8-2-17)
(f)
For single family homes and duplexes outside of the historic or beach overlay districts, a sketch plan, indicating the approximate location of all trees four-inch DBH and larger with identification of species, trunk DBH, approximate overall tree height, and the designation of the dispositions of the trees per Section 4.6.19(E)(2)(d) may be substituted for a professional tree survey. An arborist report may be required per Section 4.6.19(E)(5)(e). (Ord. No. 19-17, § 1, 8-2-17; Ord. No. 10-23, § 3, 9-5-23)
(3)
Procedure. Upon acceptance of an application, the Development Services Director, or designee, shall inspect the site, verify the information provided in the application, identify additional information required to complete the application, and approve or deny the application. Trees may be removed if either of the following conditions exist: (Ord. No. 19-17, § 1, 8-2-17; Ord. No. 10-23, § 3, 9-5-23)
(a)
The tree is located in the buildable area or yard area where a structure or improvements are to be placed and it unreasonably restricts the permitted use of the property; and, the tree cannot be relocated on the site or to an off-site location because of its condition, size, type, or age; or (Ord. No. 19-17, § 1, 8-2-17)
(b)
The tree is diseased, injured, in danger of falling, interferes with utility services, creates unsafe vision clearance, or deemed to be hazardous by the Development Services Director or designee. Observable physical damage to building foundations, driveways, and water and sewer lines shall also constitute a reasonable request for the removal of a tree only if root protection devices (such as root barriers) are not a viable option. (Ord. No. 19-17, § 1, 8-2-17; Ord. No. 10-23, § 3, 9-5-23)
(4)
Issuance of permit. (Ord. No. 19-17, § 1, 8-2-17)
(a)
Normal issuance. Upon approval of the application and payment of the application fee, a permit shall be issued, and shall be valid for a period of 180 days. The permit shall require compliance with the conditions of approval, a copy of which shall be provided with the permit. Permit applications that include tree removal must be submitted by a licensed tree trimmer or arborist. Contractors licensed simply as a landscape contractor shall not remove trees. (Ord. No. 19-17, § 1, 8-2-17; Ord. No. 10-23, § 3, 9-5-23)
(b)
Issuance for single family homes and duplexes. On the property of single family homes and duplexes, the owner may submit a tree removal permit application to do the work themself, providing the dwelling is owner occupied and providing that the extent of the work, in the determination of the Development Services Director, or designee, can be done safely by the property owner. However, street trees that are depicted on the landscape plan of record for a subdivision may not be removed unless conditions as described within LDR Section 4.6.9(E)(3) exist. Mitigation requirements shall apply per Section 4.6.19 E(5)(e). (Ord. No. 19-17, § 1, 8-2-17; Ord. No. 10-23, § 3, 9-5-23)
(c)
Emergency issuance. In the event that any tree shall be determined to be hazardous or in a condition so as to endanger the public health or safety, and requires removal without delay, verbal authorization may be given by the Development Services Director, or designee, and the tree may be removed prior to the issuance of a permit as herein required. A permit shall be applied for retroactively within seven days of the verbal authorization and removal. (Ord. No. 19-17, § 1, 8-2-17; Ord. No. 10-23, § 3, 9-5-23)
(d)
Hurricanes. During emergencies caused by hurricanes or other disaster, the City may suspend all or part of the land clearing and tree removal permit requirements for an indefinite period of time. Trees which have been uprooted, blown over and cannot be righted, or whose major branches are split or broken may be removed after a hurricane, for a period of 60 days after the storm event without obtaining a permit from the City. Trees identified on a 'Landscape Plan of Record' will ultimately have to be replaced. Residential uses shall have one year after the storm event for replacements and non-residential uses shall have six months to replace required trees and palms. (Ord. No. 19-17, § 1, 8-2-17)
(5)
Imposition of conditions. The removal permit may require mitigation of adverse impacts as provided in the following: (Ord. No. 19-17, § 1, 8-2-17; Ord. No. 10-23, § 3, 9-5-23)
(a)
Relocation. The tree or palm may be required to be relocated to a suitable location on the site or off site. (Ord. No. 19-17, § 1, 8-2-17; Ord. No. 10-23, § 3, 9-5-23)
(b)
Mitigation. Mitigation is required as follows: (Ord. No. 19-17, § 1, 8-2-17; Ord. No. 10-23, § 3, 9-5-23)
i.
Tree and palm removal shall be mitigated pursuant to Table 4.6.19(E)(5)(b)(i). Removed trees shall not be mitigated with palms; however, removed palms may be mitigated with trees. (Ord. No. 10-23, § 3, 9-5-23)
(Ord. No. 10-23, § 3, 9-5-23)
ii.
Trees or palms designated for preservation or relocation that do not survive shall be replaced in accordance with Table 4.6.19(E)(5)(b)(i). Replacements shall be the same species, or an alternate species approved by the Development Services Director, or designee. (Ord. No. 10-23, § 3, 9-5-23)
iii.
If trees or palms with a condition rating of less than 50 percent cannot be replaced on-site on a tree-for-tree or palm-for-palm basis, removed trees and palms shall be mitigated via an in-lieu fee as required by Section 4.6.19(E)(5)(d). (Ord. No. 10-23, § 3, 9-5-23)
iv.
Trees or palms provided in excess of the required replacement are not subject to the minimum specifications. (Ord. No. 10-23, § 3, 9-5-23)
(c)
Replacement. All replacement trees must be planted within 90 days of the issuance of the permit, or prior to issuance of conditional certificate of occupancy or first certificate of occupancy, except for tree replacements in connection with major storm events as described in Section 4.6.196(E)(4)(d). (Ord. No. 19-17, § 1, 8-2-17; Ord. No. 10-23, § 3, 9-5-23)
(d)
In lieu fee. Where the property cannot accommodate tree or palm replacement through mitigation, an in-lieu fee shall be deposited into the Tree Trust Fund prior to permit approval. The in-lieu fee shall be approved as part of the landscape plan. The in-lieu fee shall be calculated as established by Resolution of the City Commission: (Ord. No. 19-17, § 1, 8-2-17; Ord. No. 10-23, § 3, 9-5-23)
(e)
Exemption. Existing single family homes and duplexes outside of historic or beach overlay districts, are generally exempt from mitigation requirements provided the tree proposed for removal has a DBH of less than four inches, and the property contains the minimum number of code required trees per Section 4.6.16. Exemptions and exceptions are described as follows: (Ord. No. 19-17, § 1, 8-2-17; Ord. No. 10-23, § 3, 9-5-23)
i.
Mitigation is required for the removal of code-required trees with a DBH of four inches or greater, unless the location interferes with a proposed addition to an existing structure or new accessory structure. (Ord. No. 19-17, § 1, 8-2-17; Ord. No. 10-23, § 3, 9-5-23)
ii.
Code-required trees with a DBH four inches or greater can be removed for life safety issues, property destruction, irreversible structural deficiencies within the tree, or in an incurable disease can be documented by a certified arborist's report and no other tree saving options are available as determined by the Development Services Director or designee. Mitigation is not required for trees that present an unacceptable risk. (Ord. No. 19-17, § 1, 8-2-17; Ord. No. 10-23, § 3, 9-5-23)
iii.
If applicable, mitigation of removed trees shall be the smaller of either the quantity of trees to reach the minimum code requirement for the size of the lot or a quantity of trees that equal the caliper measurement of the tree that is proposed for removal. Notwithstanding Sections 4.6.19(E)(6), 4.6.19(E)(4)(c), 4.6.19(E)(4)(d) of the Land Development Regulations, tree removal permits are required prior to removal and penalties may be assessed pursuant to Section 4.6.19(E)(8) where a permit was not obtained prior to removal. (Ord. No. 19-17, § 1, 8-2-17; Ord. No. 10-23, § 3, 9-5-23)
(6)
Exceptions to permit requirements. (Ord. No. 19-17, § 1, 8-2-17)
(a)
Nuisance plant species exception. Nuisance plant species are those plant species classified as Category I by Florida Invasive Species Council (FISC). Removal a nuisance plant species shall be authorized by the Development Service Director or designee and may be removed without a permit fee and without mitigation. When nuisance plant species are indicated on the landscape plan of record, approval shall be conditioned upon their removal. (Ord. No. 19-17, § 1, 8-2-17; Ord. No. 10-23, § 3, 9-5-23)
(b)
Location exceptions. Removal permits and mitigation shall not be required: (Ord. No. 19-17, § 1, 8-2-17; Ord. No. 10-23, § 3, 9-5-23)
i.
On the property of licensed tree nurseries; or (Ord. No. 19-17, § 1, 8-2-17; Ord. No. 10-23, § 3, 9-5-23)
ii.
When work is done by the electric utility company within the city right-of-way or on city property; or (Ord. No. 19-17, § 1, 8-2-17; Ord. No. 10-23, § 3, 9-5-23)
iii.
Within the rights-of-way of the Lake Worth Drainage District, as governed by Interlocal Agreement; or (Ord. No. 19-17, § 1, 8-2-17; Ord. No. 10-23, § 3, 9-5-23)
iv.
On city lands, rights-of-way and easements, the City shall have the right to plant, prune, maintain and remove trees as may be necessary to ensure public safety or preserve and enhance the beauty of public grounds; or (Ord. No. 19-17, § 1, 8-2-17; Ord. No. 10-23, § 3, 9-5-23)
v.
On properties with a single-family detached building actively used for single-family residential purposes if the property owner possesses documentation from an arborist certified by the International Society of Arboriculture (ISA) or a Florida licensed landscape architect that the tree poses an unacceptable risk to persons or property. (Ord. No. 10-23, § 3, 9-5-23)
(7)
Permit fees. (Ord. No. 19-17, § 1, 8-2-17)
(a)
Vegetation Removal Permit Fees: Permit fee amounts are established by Resolution of the City Commission pursuant to Section 2.4.3(K) of the Land Development Regulations. (Ord. No. 19-17, § 1, 8-2-17; Ord. No. 10-23, § 3, 9-5-23)
(b)
Permit Fees Waived: Where a tree or palm has died due to natural causes, including disease, lethal yellowing, freezing, lightning or storms, or is a nuisance plant species, there shall be no permit fee, even though inspection and permitting and replacement requirements may be required. (Ord. No. 19-17, § 1, 8-2-17; Ord. No. 10-23, § 3, 9-5-23)
(8)
Penalties. The penalty for failing to obtain a vegetation removal permit shall result in a triple permit fee for each violation, including each tree or palm removed. Additionally, mitigation is required and must be provided using one of the following: (Ord. No. 19-17, § 1, 8-2-17; Ord. No. 10-23, § 3, 9-5-23)
(a)
DBH Replacement: Each tree removed shall be replaced with one or more trees with the equivalent DBH at the direction of the Development Services Director or designee. Where the property cannot accommodate tree replacement on a DBH basis, an in-lieu fee shall be deposited into the Tree Trust Fund, as set forth in Section 4.6.19(E)(5)(d). (Ord. No. 19-17, § 1, 8-2-17; Ord. No. 10-23, § 3, 9-5-23)
(b)
Palm Replacement: Palms shall be replaced on a one-on-one basis with palms of the same clear trunk measurement, to be approved by the Development Services Director or designee. Where the property cannot accommodate palm replacement on a one-on-one basis, an in-lieu fee shall be deposited into the Tree Trust Fund, as set forth in Section 4.6.19(E)(5)(d). (Ord. No. 10-23, § 3, 9-5-23)
(c)
Canopy Replacement for most trees or palms: If the DBH or clear trunk size of the removed trees(s) cannot be determined from any remnants, aerial photography will be used to calculate mitigation. The number of required replacement trees shall be based upon the size of canopy removed. The type of replacement trees selected by the applicant must be approved by the Development Services Director or designee. Replacement area credits shall equal the canopy removed, per Table 4.6.19)E)(8)(b). Where the property cannot accommodate tree replacement on a canopy replacement basis, an in-lieu fee shall be deposited into the Tree Trust Fund, as set forth in Section 4.6.19(E)(5)(d). (Ord. No. 19-17, § 1, 8-2-17; Ord. No. 10-23, § 3, 9-5-23)
TABLE 4.6.19(E)(8)(b)
DETERMINING REQUIRED NUMBER OF REPLACEMENT TREES
(FOR TREES REMOVED BEFORE OBTAINING AUTHORIZATION BY PERMIT)
Notes:
Type 1: Shade Tree;
Type 2: Understory Tree;
Type 3: Palm.
(Ord. No. 19-17, § 1, 8-2-17; Ord. No. 10-23, § 3, 9-5-23)
(c)
Exceptional Specimen Trees: If the removed tree qualifies as a Exceptional Specimen Tree, in addition to the triple permit fee penalty and mitigation requirements above, an additional penalty, as adopted by Resolution, shall apply. (Ord. No. 19-17, § 1, 8-2-17; Ord. No. 10-23, § 3, 9-5-23)
(F)
Tree Pruning: The purpose of tree pruning is to promote uniform and healthy growth. Pruning of tree limbs on a regularly scheduled basis will improve tree health, control growth, and enhance fruiting, flowering and appearance. Trees should be pruned for the first time, two to three years after planting, and every five years thereafter, to remove diseased limbs, co-dominant leaders, sucker growth, or crossing branches, and to remove limbs or foliage that present a hazard to power lines or structures. (Ord. No. 19-17, § 1, 8-2-17; Ord. No. 10-23, § 3, 9-5-23)
(1)
Tree pruning does not require a permit, but if it is done in violation of these regulations, the property owner shall be cited, and the following remedial requirements shall be imposed: (Ord. No. 19-17, § 1, 8-2-17)
(a)
The property owner will be required to replace the tree as per the landscape plan of record, or with a shade tree a minimum of 12 feet in height, with a six-foot spread of canopy. (Ord. No. 19-17, § 1, 8-2-17)
(b)
In lieu of replacement, the property owner may have the option of contracting with a certified arborist, to provide remedial pruning to the disfigured tree over a period of three years in an effort to repair the structural damage to the tree, if in the opinion of the arborist, this can be accomplished. A report from a certified arborist and a copy of the contract for remedial pruning must be submitted to the City for consideration of this option. (Ord. No. 19-17, § 1, 8-2-17)
(2)
Trees shall be allowed to attain their normal size, and at a minimum attain a 20-foot spread of canopy. Tree trimming practices in the City of Delray Beach must adhere to the following: (Ord. No. 19-17, § 1, 8-2-17; Ord. No. 10-23, § 3, 9-5-23)
(a)
Lower branches and suckers must be selectively removed to provide a minimum of six feet of clear trunk, and as they mature, the clearance shall be increased to seven feet adjacent to sidewalks and in areas where trees may impact traffic and pedestrian visibility. (Ord. No. 19-17, § 1, 8-2-17)
(b)
Severely cutting back branches and canopy, or "hatracking" is expressly forbidden. Topping a large tree causes excessive sprouting of weakly attached new branches, and increases wind resistance by creating denser branching patterns. All cuts must be made at the juncture of a lateral branch. (Ord. No. 19-17, § 1, 8-2-17)
(c)
The practice of "Lion's Tailing" wherein all foliage is removed except at the end of the branch, is expressly forbidden. This excessive lifting creates a condition where trees become top-heavy and can increase the chances of wind damage. (Ord. No. 19-17, § 1, 8-2-17)
(d)
Trees shall be periodically thinned to reduce leaf mass in preparation of tropical storms. No more than 30 percent of a trees interior canopy, however, shall be removed through thinning. Foliage within a tree's canopy can help protect structures from flying debris during high winds. (Ord. No. 19-17, § 1, 8-2-17; Ord. No. 10-23, § 3, 9-5-23)
(e)
All pruning shall be accomplished in accordance with the 'National Arborist's Association Standards' or 'The American National Standards Institute A 300 (ANSI A300). A tree's habit of growth must be considered before planting to prevent conflicts with view or signage, and such a conflict shall not, of itself, necessarily permit the removal of the tree. (Ord. No. 19-17, § 1, 8-2-17)
(G)
Palm tree pruning. Many palms are self-pruning, however, for aesthetic reasons palm fronds are often removed. The practice of removing all but a few fronds significantly weakens the trunk of a palm and could result in it snapping in high winds, and, is therefore, prohibited. In particular, Sabal Palms are often 'carrot topped' or 'hurricane cut'. Unless palms are being prepared for relocation, no fronds shall be removed unless they hang below a horizontal position. Fronds that touch a structure should be removed. (Ord. No. 19-17, § 1, 8-2-17)
(H)
Tree pruning/removal/maintenance requirements in the public rights-of-way. The adjacent property owner is responsible to maintain trees and vegetation between the property line/right-of-way line, and the edge of pavement of the adjacent improved right-of-way, or between the property line and the centerline of an unimproved alley. These trees may not be removed without obtaining a permit. Trees and vegetation must be maintained so as not to restrict use or visibility of public improvements, as follows: (Ord. No. 19-17, § 1, 8-2-17)
(1)
Trees and vegetation must not interfere with traffic flow or traffic safety. This includes maintaining visibility at intersections, not obstructing traffic lights, stop signs or other traffic signage. (Ord. No. 19-17, § 1, 8-2-17; Ord. No. 10-23, § 3, 9-5-23)
(2)
Trees and vegetation must not obstruct streetlights, street signs, sidewalks, roads, utilities and other public improvements. (Ord. No. 19-17, § 1, 8-2-17; Ord. No. 10-23, § 3, 9-5-23)
(I)
Existing street trees. New development and building expansion shall take into consideration the existing vegetation and provide designs which will not result in the removal of street trees, or diminish existing streetscapes. (Ord. No. 19-17, § 1, 8-2-17)
(J)
Hurricane preparedness and cleanup. (Ord. No. 19-17, § 1, 8-2-17)
(1)
Shade tree and palm tree pruning. (Ord. No. 19-17, § 1, 8-2-17)
(a)
Dead palm fronds should be removed. All coconut palms must have their coconuts removed prior to hurricane season. (Ord. No. 19-17, § 1, 8-2-17; Ord. No. 10-23, § 3, 9-5-23)
(b)
Shade trees can be pruned to enable trees to hold up better to high winds and storm damage. The following pruning practices can promote the growth of strong branches: (Ord. No. 19-17, § 1, 8-2-17)
i.
Encourage a good branch angle. A narrow angle between branches signals a point of future weakness. To prevent this, remove one of the two branches when the tree is young. (Ord. No. 19-17, § 1, 8-2-17; Ord. No. 10-23, § 3, 9-5-23)
ii.
Encourage strong branch/trunk size relationships. Lateral branches should be no more than ½ to ¾ the diameter of the trunk. Branches heavier than that often cannot be supported by the trunk in high winds. Large lower lateral branches should be removed. (Ord. No. 19-17, § 1, 8-2-17; Ord. No. 10-23, § 3, 9-5-23)
iii.
Maintain a stable center of gravity. If a tree has grown off center, due to loss of limbs or other problems. Selectively removing branches on the leaning side and encouraging branch growth on the opposite side can help re-balance the tree. (Ord. No. 19-17, § 1, 8-2-17; Ord. No. 10-23, § 3, 9-5-23)
iv.
Remove rubbing branches, suckers and water sprouts. Branches rubbing against each other produce wounds and decay, and one of the branches should be removed. Water sprouts and sucker growth can occur at the base of the tree and inside the crown. These branches are weakly attached and should be removed before they increase in size and add stress to the tree's limbs. (Ord. No. 19-17, § 1, 8-2-17; Ord. No. 10-23, § 3, 9-5-23)
v.
Do not cut branches back to stubs or 'hatrack' the tree. When a branch is cut to a stub, new branches will grow from the edges which are weakly attached and will be a weak point in high winds. (Ord. No. 19-17, § 1, 8-2-17; Ord. No. 10-23, § 3, 9-5-23)
(2)
Hazardous tree removal. (Ord. No. 19-17, § 1, 8-2-17)
(a)
All dead trees and palms must be removed prior to hurricane season. Tree removal permits are required. (Ord. No. 19-17, § 1, 8-2-17; Ord. No. 10-23, § 3, 9-5-23)
(b)
Trees or palms that increase the probability of damage to life, property, or utilities during hurricane force winds, due to height, proximity to adjacent structures, physical condition or other peculiar characteristic are declared to be a hazard and a public nuisance. The City shall retain the right to require corrective measures that may include the removal of the tree(s), or pruning to reduce the tree's height or canopy. (Ord. No. 19-17, § 1, 8-2-17; Ord. No. 10-23, § 3, 9-5-23)
(3)
Cleanup. (Ord. No. 19-17, § 1, 8-2-17)
(a)
After a storm, all property owners are required to have trees trimmed to reduce hazards from hanging limbs and branches and to provide reconstructive pruning to restore the tree's canopy, to the extent possible. (Ord. No. 19-17, § 1, 8-2-17)
(b)
Tree stumps and remains of trees that constitute a hazard shall be removed within six months after the storm event. (Ord. No. 19-17, § 1, 8-2-17)
(c)
All properties with a landscape plan of record are required to replace trees and landscaping per the approved plan. Trees shall be replaced per the approved plan on a tree per tree basis and not on a caliper inch basis, thereby not requiring a deposit into the tree trust fund. Residential properties have one year from the storm event, and non-residential properties have six months after the storm event. The Development Services Director or designee may approve additional time for replacement in instances where damage has been severe or tree replacements are unavailable. (Ord. No. 19-17, § 1, 8-2-17; Ord. No. 10-23, § 3, 9-5-23)
(K)
Nuisance species prohibited. Nuisance plant species are those classified as Category I by Florida Invasive Species Council (FISC). (Ord. No. 19-17, § 1, 8-2-17; Ord. No. 10-23, § 3, 9-5-23)
(L)
Prohibited species removed. All Prohibited Species shall be removed from all properties and tree replacements may be required if trees were used to satisfy landscape code requirements at the direction of the Development Services Director or designee. Trees shall be replaced per an approved plan on a tree-per-tree basis and not on a caliper inch basis, thereby not requiring a deposit into the tree trust fund. (Ord. No. 19-17, § 1, 8-2-17; Ord. No. 10-23, § 3, 9-5-23)
(M)
Lethal yellowing. (Ord. No. 19-17, § 1, 8-2-17)
(1)
Lethal yellowing is a systemic disease of palms caused by bacterium transmitted by tropical insects. Palms that are highly susceptible to lethal yellowing should be limited in use. The following palms are susceptible to lethal yellowing disease: (Ord. No. 19-17, § 1, 8-2-17; Ord. No. 10-23, § 3, 9-5-23)
(a)
Christmas Palm — Adonidia merrillii
(b)
Coconut Palm — Cocos nucifera
(c)
Hurricane Palm — Dictyosperma album
(f)
Chinese Fan Palm — Livistonia Chinensis
(g)
Canary Island Date Palm — Phoenix canariensis
(h)
Edibe Date Palm — Phoenix dactylifera
(d)
Senegal Date Palm — Phoenix reclinata
(e)
Wild Date Palm — Phoenix sylvestris
(f)
Arikury Palm — Syagrus schizophylla
(2)
Palm varieties resistant to lethal yellowing shall be planted in favor of those susceptible to lethal yellowing. (Ord. No. 19-17, § 1, 8-2-17; Ord. No. 10-23, § 3, 9-5-23)
(3)
Proposed coconut palms must be resistant to lethal yellowing. Proof of the variety must be provided at the time of permit inspection. (Ord. No. 19-17, § 1, 8-2-17; Ord. No. 10-23, § 3, 9-5-23)
Editor's note— Ord. No. 19-17, § 1, adopted Aug. 2, 2017, amended § 4.6.19 in its entirety to read as herein set out. Former § 4.6.19 pertained to similar subject matter and derived from Amd. 37-06, adopted Sep. 19, 2006; Amd. Ord. 35-08, adopted Sep. 16, 2008; Amd. Ord. 38-09, adopted Aug. 18, 2009; and Amd. Ord. 22-15, adopted Dec. 8, 2015.
(A)
Concept and purpose. Through a Transfer of Development Rights (TDR), the governing body severs the development rights from the underlying fee interest in the regulated property. Permission is given to the owner of the regulated property to either transfer the development rights in that property to another parcel owned by the regulated party or to sell the development rights to owners of land in other designated areas. The TDR approach restricts development in the owner's parcel, but mitigates the overall harm of the land use control by permitting development elsewhere.
(B)
Procedure.
(1)
Creation. To obtain or create a transferable development right (TDR), the City or the owner of property to be regulated shall proceed through the rezoning process for the purpose of rezoning to either the Community Facilities (CF), Open Space (OS), or Conservation (CD) Zone District, as appropriate depending upon the intended use of the regulated property.
(2)
Concurrent rezoning. When it is intended/desired to specifically determine the receiver property and its proposed development intensity at the same time as a Certificate is issued for the regulated property, a concurrent rezoning of both parcels shall be undertaken. However, such rezoning is not necessary if the receiver parcel is properly zoned and the proposed development will be consistent with the Comprehensive Plan and will meet provisions of the Land Development Regulations.
(C)
Determination of value of severed development rights.
(1)
Value base. The value of the severed development rights shall be equal to current development potential of the regulated property in terms of residential dwelling units or floor area of office space less any compensation, including current and ongoing value of the current use, which is provided by the City at the time of rezoning and/or issuance of a Certificate of Development Rights.
(2)
Value determination. To determine the value of severed rights, the petitioner shall provide a site development plan which will comply with the City's development regulations. The intensity of the use accommodated by that site plan shall establish the base value of the property. From this base value, the ongoing value shall be subtracted. The Local Planning Agency shall determine the appropriateness of the intensity and shall certify it to the City Commission. This information shall be a part of the rezoning review and hearing record.
(3)
Equivalency. Office floor area and residential units can be interchanged at the rate of 2,000 square feet of office floor area being equal to one residential dwelling unit. A conversion from office to residential, or from residential to office, may occur at any time up to the application of the Certificate to a receiver property.
(4)
Certificate. Within the rezoning ordinance, the value of the severed development rights shall be stated. In addition to the rezoning ordinance, the owner of the regulated land shall be issued a Certificate of Development Rights. The Certificate shall be a separate document prepared in a form as approved by the City Attorney. It shall not be issued until the regulated property is rezoned and a determination of value is made. The Certificate is transferable (it may be sold). The Certificate shall provide its owner with a development credit to be used pursuant to Subsection (D). Ownership of a Certificate is not equivalent to a demand of project approval; rather, it allows its owner to seek an increase in otherwise allowed intensity of use
(D)
Limitations.
(1)
Limitations on regulated properties. To be eligible for transference of development rights, the resulting use of the "to be regulated" property must be in a manner to advance goals, objectives, and policies of the adopted Comprehensive Plan through: (Ord. No. 23-20, § 36, 9-10-20)
(a)
Preservation of historic structures and sites;
(b)
Obtaining land for public facilities (e.g. fire stations, tennis courts, water storage tanks, etc.);
(c)
Preservation of designated conservation areas;
(d)
Any time when a voluntary action would aide in fulfilling a policy or objective of the adopted Comprehensive Plan. (Ord. No. 23-20, § 36, 9-10-20)
(2)
Limitations on receiver properties. To apply a TDR to a receiver property, it must be able to be developed in accordance with the goals, objectives, and policies of the adopted Comprehensive Plan. (Ord. No. 23-20, § 36, 9-10-20) [13]
Editor's note— Ord. No. 23-20, § 36, adopted September 10, 2020, repealed subsections (2)(a) and (b) which pertained to which areas receiver properties must be located.