LAND USE REGULATIONS
The purpose of this article is to indicate which land uses may locate in each standard zoning district and under what requirements; and which land uses may not locate therein. Certain land uses may locate in a given district as a matter of right upon compliance with special regulations for such a land use. A further distinction is made for land uses which may locate in a given district only upon obtaining a conditional use permit or a temporary use permit.
(Ord. No. 090412-02, § 1, 9-4-2012)
The land uses permitted within each zoning district are established in article II of this chapter. Detailed descriptions and regulations for uses are found in sections 18-55 through 18-65. Even if a land use may be indicated as permitted by right or requiring a conditional use in a particular district, such a land use may not necessarily be permitted or permissible on any or every property in such district. No land use is permitted or permissible on a property unless it can be located on it or implemented in full compliance with all of the applicable standards and regulations of this chapter or unless an appropriate variance has been granted pursuant to section 18-253.
(1)
Principal land uses permitted by right. Principal land uses listed as permitted by right are permitted per the general land use requirements of this article; per the density, intensity and bulk regulations of the specific zoning district in which they are located; per any additional requirements imposed by applicable overlay districts; per all other applicable requirements of this chapter; and per any and all other applicable village, county, state and federal regulations.
(2)
Principal land uses permitted as conditional uses. Principal land uses allowed only with a conditional use permit may be permitted subject to all the requirements applicable to uses permitted by right as listed in subsection (1), above, plus any additional requirements applicable to that particular land use imposed as part of the conditional use permit process established in section 18-246. Each application for, and instance of, a conditional use shall be considered a unique situation and shall not be construed as precedence for similar requests.
(3)
Accessory land uses. Accessory land uses are allowed subject to all the requirements and exemptions applicable to principal land uses permitted by right as listed in subsection (1), above. Accessory land uses allowed only with a conditional use permit are subject to all the requirements and exemptions applicable to principal land uses requiring a conditional use permit as listed in subsection (2), above.
(4)
Temporary land uses. Temporary land uses are allowed on a temporary basis subject to permitting requirements in section 18-248 of this chapter, unless otherwise specified in this article.
(5)
Nonconforming land uses. Land uses which are not listed in a specific zoning district in article II are not permitted in such zoning district, except as legal nonconforming uses (section 18-91).
(Ord. No. 090412-02, § 1, 9-4-2012)
All uses of land initiated within the jurisdiction of this chapter on, or following, the effective date of this chapter shall comply with all of the provisions of this chapter.
(1)
Land use regulations.
a.
All uses of land shall comply with all the regulations and requirements of this chapter, pertaining to the types of uses allowed within particular zoning districts. Such regulations and requirements address both general and specific regulations which land uses shall adhere to, and which are directly related to the protection of the health, safety and general welfare of the residents of the Village of Fontana.
b.
Off-street parking requirements specific to each land use pertain to passenger and delivery vehicles.
(2)
Accessory uses and structures. Accessory uses and structures shall comply with the regulations and requirements of this chapter as well as the following listed regulations:
a.
No accessory structure or use shall be constructed on any lot prior to the establishment of an allowable principal use, unless otherwise stated in this chapter.
b.
Accessory structures are permitted in the rear and side yards of all lots, and in the street yards of waterfront lots, flag lots, through lots, corner lots, and lots of one acre or more in size. When located in the side yard and the street yard, they shall not be closer than the minimum required side yard, rear yard and street yard setbacks. Only boathouses, boat hoists, and piers shall be permitted in the shoreyard.
c.
With the exception of an in-home suite (see subsection 18-64(e), or accessory dwelling units (see subsection 18-64(f)), in no instance shall an accessory structure, cellar, basement, tent, or recreational trailer be used as a residence.
d.
In all zoning districts the requirement that accessory structures comply with principle structure setback requirements for accessory structures 600 square feet or more in size shall not apply to properties abutting along the relevant and affected sideyard for at least 100 feet on either the Institutional (IN) District or any property in any zoning district which is otherwise restricted against development by private or public covenant or nonconforming status so as to render such property unbuildable.
(3)
Density, intensity and bulk regulations. All land use and/or development of land shall comply with all applicable regulations of articles IV and V of this chapter pertaining to the maximum permitted density, intensity and bulk regulations.
(4)
Nonconforming lots, uses, structures and site requirements. Land uses not in conformance with the requirements of the applicable zoning district shall be subject to the special limitations and exceptions as established in article VI. Land uses located on substandard lots or on nonconforming lots or in nonconforming structures shall comply with all the regulations and requirements of article VI.
(5)
Overlay zoning district regulations. All land use and/or development of land shall comply with all the applicable regulations of this chapter as established under any applicable overlay zoning districts in article VII of this chapter.
(6)
Design standards. All new, remodeled, and expanded residential and nonresidential development shall comply with design standards as required in article X of this chapter.
(7)
Landscaping regulations. All new, remodeled, and expanded development of land shall comply with all the regulations and requirements of article XI of this chapter.
(8)
Signage regulations. All land use and/or development of land shall comply with all requirements of article XII, pertaining to the type and amount of signage permitted on property.
(9)
Performance standards. All land use and/or development of land shall comply with applicable requirements established in article XIII of this chapter, pertaining to the provision of appropriate access, parking, loading, storage, swimming pools, antennas, communications towers, as well as defining acceptable levels of potential nuisances such as noise, vibration, odors, heat, glare and smoke.
(10)
Number of buildings per lot. In the AH-35, LR-0, SR-1, SR-2, SR-4, SR-5, NB Districts, only one principal building shall be permitted on any one lot. In all other districts more than one principal building may be permitted on any one lot upon granting of a conditional use permit for group or large development or as may be approved as part of a planned development per section 18-247 and section 18-43 so long as the planned development is under common ownership and at a residential density of not less than one acre per dwelling unit.
(11)
Number of principal land uses per building. No more than one nonresidential land use shall be permitted in any building unless a conditional use permit for a group development or large development is obtained. With the exception of "accessory dwelling units," "home occupation," "expanded home occupation," and "in-home suite" uses, no building containing a nonresidential land use shall contain a residential land use.
(12)
Group and large development requirements. All uses and/or development of land within a group or large development shall comply with the requirements of section 18-167.
(13)
Planned development requirements. All uses and/or development of land within a planned development shall comply with all requirements of section 18-247.
(14)
Procedural regulations and requirements. All land use and/or development of land shall comply with all requirements of article XV pertaining to the procedures necessary to secure review and approval of land use and/or development. Such regulations and restrictions address both procedural and technical requirements.
(15)
Site plan review required. All uses are subject to site plan review and approval in accordance with section 18-245 of this chapter, except for the following:
a.
Single-family and two-family residential uses on individual lots in any zoning district.
b.
Agricultural land uses which are permitted by right in any agriculture zoning district.
c.
Uses within a precise implementation plan in a planned development in accordance with the procedures of section 18-247, provided that the precise implementation plan provides a similar level of detail and range of plans as a typical site plan submittal required under this chapter.
(Ord. No. 090412-02, § 1, 9-4-2012; Ord. No. 03-02-15-01, § 1, 3-2-2015; Ord. No. 061223-02, § 3, 6-12-2023)
The land use categories employed by this chapter are defined in sections 18-55 through 18-65. Land use categories which are not listed in this chapter are not necessarily excluded from locating within any given zoning district. Section 18-231 empowers the zoning administrator to make interpretations on matters regarding specific land use proposals which are not addressed by this chapter.
(Ord. No. 090412-02, § 1, 9-4-2012)
The Table of Land Uses on the following pages is provided as a convenience for the zoning administrator and the general public. Where there are conflicts between the text of this chapter and the Table of Land Uses, the text shall prevail. Refer to section 18-167 for additional standards pertaining to group and large developments which are regulated as conditional uses.
(Ord. No. 090412-02, § 1, 9-4-2012; Ord. No. 061118-02, § 39, 6-11-2018; Ord. No. 030519-01, § 4, 3-5-2019; Ord. No. 040419-01, § III, 4-4-2019; Ord. No. 110121-02, § 19, 11-1-2021; Ord. No. 020623-02, § 17, 2-7-2023; Ord. No. 050123-02, § 32, 5-1-2023; Ord. No. 100923-01, § 3, 10-9-2023)
(a)
Single-family: A fully detached single-family residence located on an individual lot having no roof, wall or floor in common with any other dwelling unit. Single-family land uses shall adhere to the following listed regulations:
(1)
The dwelling unit must be a site-built structure built in compliance with the Uniform Dwelling Code (UDC), or may be a manufactured dwelling as permitted by the UDC, or a manufactured home that has received a federal manufactured housing certificate label.
(2)
The dwelling must be attached to a finished, permanent foundation, such as a poured concrete slab or basement meeting UDC requirements.
(3)
This dwelling unit type may not be split into two or more residences, except for permitted accessory dwellings meeting the requirements of this chapter.
(4)
The dwelling unit roof shall have a pitch of at least three feet in rise for every 12 feet in run, except by conditional use permit.
(5)
A minimum of two parking spaces shall be provided.
(6)
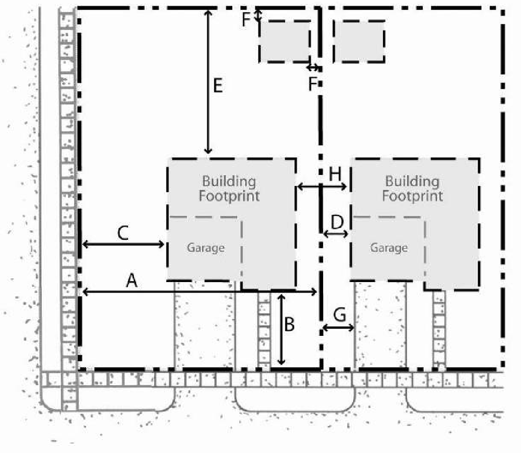
This following figure is intended to provide a sample graphic representation of setback and dimensional requirements for single-family land uses. Specific requirements are listed in article II under the density, intensity and bulk requirements for each zoning district.
(b)
Two-flat: A single structure with two separate residences, each with a private individual access and no shared internal access. Two-flats are attached units within a two-story structure with one unit above the other. Two-flats shall adhere to the following listed regulations:
(1)
This dwelling unit type may not be split into additional residences.
(2)
Individual sanitary sewer and public water laterals and utility meters are required for each dwelling unit.
(3)
A minimum of two parking spaces per dwelling unit shall be provided.
(4)
This following figure is intended to provide a sample graphic representation of setback and dimensional requirements for two-flat land uses. Specific requirements are listed in article II under the density, intensity and bulk requirements for each zoning district.
(c)
Twin-house: This dwelling unit type consists of two separate residences, each having a private individual access, and no shared internal access. Similar to duplexes, twin-houses are attached side-by-side units, each with a ground floor and roof. Unlike duplexes, twin-houses are located on a shared, single lot. Twin-houses shall adhere to the following listed regulations:
(1)
A Uniform Dwelling Code required fire-rated wall must separate the two dwelling units from the lowest level to flush against the underside of the roof.
(2)
This dwelling unit type may not be split into additional residences.
(3)
Individual sanitary sewer and public water laterals and utility meters are required for each dwelling unit.
(4)
A minimum of two parking spaces per dwelling unit shall be provided.
(5)
This following figure is intended to provide a sample graphic representation of setback and dimensional requirements for twin-house land uses. Specific requirements are listed in article II under the density, intensity and bulk requirements for each zoning district.
(d)
Duplex: This dwelling unit type consists of two separate residences, each having a private individual access, and no shared internal access. Duplexes are attached side-by-side units, each with a ground floor and roof. Unlike twin-homes, duplex dwelling units are located on individual lots. Duplexes shall adhere to the following listed regulations:
(1)
A Wisconsin Commercial Code required fire-rated wall must separate the two dwelling units from the lowest level to flush against the underside of the roof.
(2)
This dwelling unit type may not be split into additional residences.
(3)
Individual sanitary sewer and public water laterals and utility meters are required for each dwelling unit.
(4)
A minimum of two parking spaces per dwelling unit shall be provided.
(5)
This following figure is intended to provide a sample graphic representation of setback and dimensional requirements for duplex land uses. Specific requirements are listed in article II under the density, intensity and bulk requirements for each zoning district.
(e)
Townhouse: Attached, two-story residences, each having a private, individual access. This dwelling unit type may be located on its own lot or within a group development. Each dwelling unit shares at least one common wall with an adjacent dwelling unit. Townhouses shall adhere to the following listed regulations:
(1)
A Wisconsin Commercial Code required fire-rated wall must separate the two dwelling units from the lowest level to flush against the underside of the roof.
(2)
This dwelling unit type may not be split into additional residences.
(3)
Individual sanitary sewer and public water laterals and utility meters are required for each dwelling unit.
(4)
No more than six and no less than three townhouse dwelling units may be attached per group.
(5)
All townhouse units within a development shall be located a minimum of 30 feet from the boundary of the development.
(6)
A minimum of two parking spaces per dwelling unit shall be provided.
(7)
This following figure is intended to provide a sample graphic representation of setback and dimensional requirements for townhouse land uses. Specific requirements are listed in article II under the density, intensity and bulk requirements for each zoning district.
(f)
Multiplex: This dwelling unit type consists with three or more individual attached dwelling units which have private, individual exterior entrances. Multiplexes shall adhere to the following listed regulations:
(1)
A Wisconsin Commercial Code required fire-rated wall separating living areas from the lowest level through the roof is required between each dwelling unit.
(2)
This dwelling unit type may not be split into additional residences.
(3)
Individual sanitary sewer and public water laterals and utility meters are required for each dwelling unit.
(4)
No more than eight and no less than three multiplex dwelling units may be attached per group.
(5)
All multiplex units within a development shall be located a minimum of 30 feet from the boundary of the development.
(6)
A minimum of 1½ parking spaces per dwelling unit shall be provided.
(7)
This following figure is intended to provide a sample graphic representation of setback and dimensional requirements for multiplex land uses. Specific requirements are listed in article II under the density, intensity and bulk requirements for each zoning district.
(g)
Apartment: A single structure with three or more individual attached dwelling units which take access from a shared entrance or hallway. Apartments shall adhere to the following listed regulations:
(1)
A Uniform Dwelling Code required fire-rated wall separating living areas from the lowest level to the underside of the roof is required between each dwelling unit.
(2)
This dwelling unit type may not be split into additional residences.
(3)
Individual sanitary sewer and public water laterals and utility meters are required for each dwelling unit.
(4)
No more than eight and no less than three apartment dwelling units may be attached per group.
(5)
All apartment units within a development shall be located a minimum of 30 feet from the boundary of the development.
(6)
As part of the conditional use requirement for group developments, any development comprised of one or more buildings which contain four or more dwelling units shall provide additional site design features such as underground parking, architectural elements, landscaping, and/or on-site recreational facilities.
(7)
A minimum of 1½ parking spaces per dwelling unit shall be provided.
(8)
This following figure is intended to provide a sample graphic representation of setback and dimensional requirements for apartment land uses. Specific requirements are listed in article II under the density, intensity and bulk requirements for each zoning district.
(h)
Mobile home: A fully detached, single-family residence, which has not received a federal manufactured housing certificate. Mobile homes shall adhere to the following listed regulations:
(1)
No mobile home may be split into two or more residences.
(2)
Each mobile home site shall be serviced with public sewer, water and electric service connections and shall be placed on a permanent slab or solid foundation with appropriate skirting on all sides.
(3)
A minimum of one parking space shall be provided by mobile home.
(4)
This following figure is intended to provide a sample graphic representation of setback and dimensional requirements for mobile home land uses. Specific requirements are listed in article II under the density, intensity and bulk requirements for each zoning district.
(i)
Mobile home subdivision: This land use is a form of residential development which is exclusively reserved for individually sold lots containing mobile home units. Mobile home subdivisions shall adhere to the following listed regulations:
(1)
Each lot and mobile home unit must meet the requirements for mobile homes listed in subsection (h), above.
(2)
Development shall be located so as to blend with adjacent residentially zoned areas to the greatest extent possible.
(3)
All electric, telephone or cable television service within a mobile home park shall be underground.
(j)
Mobile home park: This land use is a form of residential development which is exclusively reserved for individually sold or rented air right pads containing mobile home units. Mobile home parks shall adhere to the following listed regulations:
(1)
Each air pad and mobile home unit must meet the requirements for mobile homes listed in subsection (h), above.
(2)
Development shall be located so as to blend with adjacent residentially zoned areas to the greatest extent possible.
(3)
All electric, telephone or cable television service within a mobile home park shall be underground.
(k)
Mixed-use residential: Two or more residential dwellings within a mixed-use structure, which is defined as a single building containing more than one type of land use. Typically these are two or more stories tall with nonresidential uses on the ground floor. Both residential and nonresidential uses have a clear principal use presence. A single residential unit within a mixed-use situation shall be treated as an accessory dwelling unit. Mixed-use residential uses shall adhere to the following listed regulations:
(1)
Evidence that covenants specifying respective obligations with regard to any common structures, such as the shared wall, roof, and other inseparable improvements, are required.
(2)
A minimum of one parking space per 300 square feet of gross floor area shall be provided for nonresidential units.
(3)
A minimum of one parking space shall be provided for each dwelling unit.
(l)
Existing residential: All existing residential land uses as of the effective date of the ordinance codified in this chapter.
(Ord. No. 090412-02, § 1, 9-4-2012)
(a)
Office. Exclusively indoor land uses whose primary functions are the handling of information or administrative services. Such land uses do not typically provide services directly to customers on a walk-in or on-appointment basis. Office land uses shall adhere to the following listed regulations:
(1)
A bufferyard with a minimum opacity of 0.60 shall be provided along all property abutting residentially zoned property.
(2)
A minimum of four parking spaces per every 1,000 square feet of primary floor area shall be provided.
(b)
Personal or professional service. Exclusively indoor land uses whose primary function is the provision of services directly to an individual on a walk-in or appointment basis. Examples of personal or professional services include, but are not limited to: insurance or financial services, realty offices, hospitals, medical offices and clinics, veterinary clinics, barber shops, beauty shops, and related land uses. Personal or professional service land uses shall adhere to the following listed regulations:
(1)
A bufferyard with a minimum opacity of 0.60 shall be provided along all property abutting residentially zoned property.
(2)
Generally, a minimum of four parking spaces per every 1,000 square feet of primary floor area shall be provided; however, the following specific requirements may apply:
a.
Banks and savings and loans shall also provide four stacking spaces for each teller window.
b.
Hospitals, medical and dental clinics shall provide two spaces for every 1,000 square feet of primary floor area, plus four spaces for each 1,000 square feet of outpatient clinic.
(c)
Artisan studio. A building or portion thereof used for the preparation, display, and sale of individually crafted artwork, jewelry, furniture, sculpture, pottery, leather, hand-woven articles, and related items, as either a principal use or accessory use. A studio is used by no more than three artists or artisans. An artisan production shop is an artisan studio used by more than three artists or artisans. Artisan land uses shall adhere to the following listed regulations:
(1)
A bufferyard with a minimum opacity of 0.60 shall be provided along all property abutting residentially zoned property.
(2)
A minimum of one parking space per every 250 square feet of primary floor area shall be provided.
(d)
Indoor sales or service. Land uses which conduct sales or display merchandise or equipment, or provide nonpersonal or nonprofessional services entirely within an enclosed building. Indoor sales or services land uses may include, but are not limited to: self-services facilities such as coin-operated laundromats. Display of products outside of an enclosed building shall instead be considered an incidental outdoor display accessory use or, if outdoor sales exceed 15 percent of the total sales area of the building(s) on the property, an outdoor display principal land use. Indoor sales or service land uses shall adhere to the following listed regulations:
(1)
A bufferyard with a minimum opacity of 0.60 shall be provided along all property abutting residentially zoned property.
(2)
A minimum of four parking spaces per 1,000 square feet of primary floor area shall be provided.
(e)
Outdoor display. Land uses which conduct sales and display merchandise or equipment outside of an enclosed building. Outdoor display land uses may include, but are not limited to: garden centers, recreation equipment sales, monument sales, and manufactured and mobile housing sales. Such land uses do not include vehicle rental or sales (see subsection 18-56(p)) or the storage or display of inoperable equipment, or other materials typically associated with a junkyard or salvage yard (see subsection 18-62(d)). If a land use displays for sale or rent only a limited amount of product outside of an enclosed building, such use may instead be considered incidental indoor sales under subsection 18-64(p). Outdoor display land uses shall adhere to the following listed regulations:
(1)
The area of outdoor sales shall be calculated as the area which would be enclosed by a required physical separation installed and continually maintained in the most efficient manner which completely encloses all materials displayed outdoors.
(2)
A bufferyard with a minimum opacity of 0.60 shall be provided along all property abutting residentially zoned property.
(3)
The display of items shall not be permitted in required setback areas, landscape areas or bufferyards.
(4)
Display areas shall be separated from any circulation area by a minimum of ten feet. This separation shall be clearly delimited by a physical separation such as a greenway, curb, fence, or line of planters, or by a clearly marked paved area.
(5)
Signs, screening, enclosures, landscaping, or materials being displayed shall not interfere in any manner with either on-site or off-site traffic visibility, including potential vehicle/vehicle and vehicle/pedestrian conflicts.
(6)
Outdoor display shall be permitted during the entire calendar year, however, if goods are removed from the display area all support fixtures used to display the goods shall be removed within ten calendar days of the goods' removal.
(7)
A minimum of one parking space per every 250 square feet of primary floor area shall be provided. In no event shall the display of items reduce or inhibit the use or number of parking stalls provided on the property below what is required by this section. If the number of provided parking stalls on the property is already less than the requirement, such display area shall not further reduce the number of parking stalls already present.
(f)
Indoor entertainment. Land uses where entertainment services are provided entirely within an enclosed building. Such activities often have operating hours that extend beyond most other commercial land uses. Indoor entertainment land uses may include, but are not limited to: restaurants, taverns, theaters, health or fitness centers, indoor commercial swimming pools, all forms of training studios (dance, art, yoga, martial arts, etc.), bowling alleys, arcades, roller rinks, and pool halls. Indoor entertainment land uses shall adhere to the following listed regulations:
(1)
No customer entrance of any kind shall be permitted within 150 feet of a residentially zoned property.
(2)
A bufferyard with a minimum opacity of 0.60 shall be provided along all property abutting residentially zoned property.
(3)
A minimum of one parking space per 400 square feet of primary floor area.
(g)
Outdoor entertainment.
(1)
Minor outdoor food and beverage seating. Land uses limited to outdoor consumption of food and beverages. Permitted by right, subject to all of the following requirements:
a.
The maximum number of outdoor seats shall be 50.
b.
Hours of outdoor operation limited to 6:00 a.m. to 11:00 p.m. daily.
c.
Any outdoor noise, including live music and voices, shall comply with all village noise regulations. Amplified sound is not permitted, except within or adjacent to the Lake Street right-of-way between Kinzie Avenue and Fontana Beach, where it is permitted 10:00 a.m. to 11:00 p.m. daily.
d.
Any outdoor lighting shall comply with all village lighting regulations. In addition, the maximum intensity of any outdoor light element shall be a maximum of 100 watts incandescent or its equivalent with another form of lighting. All outdoor lighting fixtures shall have a full 90 degree cutoff and shall be oriented straight down. The maximum fixture mounting height of all outdoor lighting shall be 12 feet above grade directly under the fixture.
e.
A bufferyard with an opacity of at least 0.2 shall be provided around the perimeter of the activity area except where adjacent to an on-site building or if located within or adjacent to a right-of-way.
f.
The entire area used for outdoor food and beverage seating shall be located a minimum of 100 feet from any parcel within a Residential Zoning District as defined in section 18-21 of the zoning ordinance, including the LR-0, SR-I, SR- 2, SR-4, SR-5, AR-6, MR-8, and MR-12 Zoning Districts; or from any parcel containing only residential units within a Planned Development Zoning District. The separation requirement between an outdoor food and beverage seating area and residential dwelling units within the same Planned Development Zoning District shall be subject to the provisions of the planned development.
g.
Alcohol service or consumption is not permitted within this land use.
(2)
Major outdoor food and beverage seating. Land uses limited to outdoor consumption of food and beverages. Permitted by granting of a conditional use permit, subject to all of the following requirements:
a.
The maximum number of outdoor seats shall be 150.
b.
Hours of outdoor operation limited to 6:00 a.m. to 11:00 p.m. daily.
c.
Any outdoor noise, including live music and voices, shall comply with all village noise regulations. Amplified sound is not permitted, except within or adjacent to the Lake Street right-of-way between Kinzie Avenue and Fontana Beach, where it is permitted 10:00 a.m. to 11:00 p.m. daily.
d.
Any outdoor lighting shall comply with all village lighting regulations. In addition, the maximum intensity of any outdoor light element shall be a maximum of 100 watts incandescent or its equivalent with another form of lighting. All outdoor lighting fixtures shall have a full 90 degree cutoff and shall be oriented straight down. The maximum fixture mounting height of all outdoor lighting shall be 12 feet above grade directly under the fixture.
e.
A bufferyard with an opacity of at least 0.3 shall be provided around the perimeter of the activity area except where adjacent to an on-site building or if located within or adjacent to a right-of-way.
f.
The entire area used for outdoor food and beverage seating shall be located a minimum of 200 feet from any parcel within a Residential Zoning District as defined in section 18-21 of the zoning ordinance, including the LR-0, SR-I, SR- 2, SR-4, SR-5, AR-6, MR-8, and MR-12 Zoning Districts; or from any parcel containing only residential units within a Planned Development Zoning District. The separation requirement between an outdoor food and beverage seating area and residential dwelling units within the same Planned Development Zoning District shall be subject to the provisions of the planned development.
g.
Alcohol service or consumption is permitted per the limitations of a village license.
h.
Any other requirements or limitations approved during the conditional use process.
(3)
Minor Outdoor Commercial Entertainment. Land uses which provide entertainment services partially or wholly outside of an enclosed building. Such activities may have the potential to be associated with nuisances related to noise, lighting, dust, trash, and late operating hours. Examples of minor outdoor commercial entertainment land uses include but are not limited to, outdoor consumption of food and beverages with beer gardens and similar areas oriented to outdoor drinking more than outdoor dining; and outdoor assembly areas for public and private ceremonies and performance with more than 150 seats that are not otherwise considered major outdoor commercial entertainment land uses. Permitted by granting of a conditional use permit, subject to all of the following:
a.
There is no limitation on the number of outdoor seats, unless imposed by the requirements of the conditional use permit.
b.
Hours of outdoor operation limited hours of outdoor operation limited to 6:00 a.m. to 11:00 p.m. daily.
c.
Any outdoor noise, including live music and voices, shall comply with all village noise regulations. Amplified sound is permitted after 10:00 a.m. until 11:00 p.m., daily.
d.
Any outdoor lighting shall comply with all village lighting regulations.
e.
A bufferyard with an opacity of at least 0.5 shall be provided around the perimeter of the activity area except where adjacent to an on-site building or if located within or adjacent to a right-of-way.
f.
The entire area used for outdoor commercial entertainment shall be located a minimum of 300 feet from any parcel within a Residential Zoning District as defined in section 18-21 of the zoning ordinance, including the LR-0, SR-1, SR- 2, SR-4, SR-5, AR-6, MR-8, and MR-12 Zoning Districts; or from any parcel containing only residential units within a Planned Development Zoning District. The separation requirement between a minor outdoor commercial entertainment activity area and residential dwelling units within the same Planned Development Zoning District shall be subject to the provisions of the planned development.
g.
Alcohol service or consumption is permitted per the limitation of a village license.
h.
Any other requirements or limitations approved during the conditional use process.
(4)
Major outdoor commercial entertainment. Land uses which provide entertainment services partially or wholly outside of an enclosed building and that generate regional traffic and may likely generate lighting and noise impacts well beyond property lines. Examples of major outdoor commercial entertainment land uses include, but are not limited to, race tracks, amusement parks, water parks or outdoor commercial swimming pools, fair grounds, outdoor stadiums and arenas, outdoor theaters oriented to high-impact performances, drive-in theaters, driving ranges, miniature golf facilities, go-cart tracks, and tournament-oriented athletic facilities with more than 250 parking spaces. Permitted by granting of a conditional use permit, subject to all of the following:
a.
There is no limitation on the number of seats, unless imposed by the requirements of the conditional use permit.
b.
Hours of operation limited to 6:00 a.m. to 11:00 p.m. daily.
c.
Any outdoor noise, including live music and voices, shall comply with all village noise regulations. Amplified sound is permitted after 10:00 a.m. until 11:00 p.m., daily.
d.
Any outdoor lighting shall comply with all village lighting regulations.
e.
A bufferyard with an opacity of at least 1.0 shall be provided around the perimeter of the activity area except where adjacent to an on-site building or if located within or adjacent to a right-of-way.
f.
The entire area used for outdoor commercial entertainment shall be located a minimum of 500 feet from any parcel within a Residential Zoning District as defined in section 18-21 of the zoning ordinance, including the LR-0, SR-1, SR-2, SR-4, SR-5, AR-6, MR-8, and MR-12 Zoning Districts; or from any parcel containing only residential units within a Planned Development Zoning District. The separation requirement between a major outdoor commercial entertainment activity area and residential dwelling units within the same Planned Development Zoning District shall be subject to the provisions of the planned development.
g.
Any other requirements or limitations approved during the conditional use process.
(h)
In-vehicle sales or service. Land uses where sales and/or services are provided to persons in vehicles, or to vehicles which may or may not be occupied at the time of such activity (except vehicle repair and maintenance services). Such land uses often have traffic volumes which exhibit their highest levels concurrent with peak traffic flows on adjacent roads. In-vehicle sales or service land uses may include, but are not limited to, drive-in, drive-up, and drive-through facilities, vehicular fuel stations, and all forms of car washes. If performed in conjunction with a principal land use (e.g., a convenience store, restaurant or bank), in-vehicle sales and service land uses shall be considered an accessory use.
(1)
A bufferyard with a minimum opacity of 0.60 along all property borders abutting residentially zoned property shall be provided.
(2)
Except where approved by conditional use permit, each drive-up lane shall have a minimum stacking length of 100 feet behind the pass through window and 40 feet beyond the pass through window.
(3)
The drive-through facility shall be designed so as to not impede or impair vehicular and pedestrian traffic movement, or exacerbate the potential for pedestrian/vehicular conflicts.
(4)
Clearly marked pedestrian crosswalks shall be provided for each walk-in customer access to the facility adjacent to the drive-through lane(s).
(5)
In no instance shall a drive-through facility be permitted to operate which endangers the public safety, even if such land use has been permitted under the provisions of this section.
(6)
The setback of any overhead canopy or similar structure shall be a minimum of ten feet from all street rights-of-way lines, a minimum of 20 feet from all residentially-zoned property lines, and shall be a minimum of five feet from all other property lines. The total height of any overhead canopy or similar structure shall not exceed 20 feet per the measurement of roof height.
(7)
All vehicular areas of the facility shall provide a surface paved with concrete or bituminous material which is designed to meet the requirements of a minimum four-ton axle load.
(8)
Interior curbs shall be used to separate driving areas from exterior fixtures such as fuel pumps, vacuums, menu boards, canopy supports, and landscaped islands. Said curbs shall be a minimum of six inches high and shall be of a nonmountable design. No curb protecting an exterior fixture shall be located closer than 25 feet to all property lines.
(9)
Any text or logo larger than one square foot per side on an overhead canopy or other accessory structure shall be considered a freestanding sign subject to regulation under article XII of this chapter.
(10)
Refer to the parking requirements of the other land use activities on the site, such as indoor sales and service land uses for a gas station/convenience store, or office land uses for a bank.
(i)
Bed and breakfast establishment. Bed and breakfast establishments are indoor lodging facilities in compliance with Wis. Stats. 254.61(1), that is the owner's personal residence, is occupied by the owner at the time of rental to guests, and in which the only meal served is breakfast served only to guests. Such land uses may provide indoor recreational facilities for the exclusive use of their customers. Bed and breakfast establishments shall adhere to the following additional listed regulations:
(1)
No premises shall be utilized for a bed and breakfast establishment unless there are at least two exits to the outdoors from such premises.
(2)
No bedroom shall be located in an accessory structure.
(3)
Rooms utilized for sleeping shall have a minimum size of 100 square feet for every two occupants with an additional 30 square feet for each additional occupant to a maximum of four occupants per room.
(4)
All habitable areas or rooms shall have code compliant smoke detectors/alarms and carbon dioxide detectors/alarms.
(5)
One lavatory and bathing facility shall be required for every ten occupants, in addition to the owner/occupant personal facilities.
(6)
Each such establishment shall be inspected annually by the building inspector to verify that the land use continues to meet all applicable regulations. A fee for such annual inspection shall be imposed by the village.
(7)
Each operator shall keep a list of names of all persons staying at the bed and breakfast establishment. This list shall be kept on file for a period of one year. Such list shall be available for inspection by village officials at any time.
(8)
The maximum stay for occupants of bed and breakfast operations shall be 14 consecutive days.
(9)
No retail sales shall occur in a bed and breakfast establishment.
(10)
A minimum of one parking space per each bedroom in addition to requirements for principal residents shall be provided.
(11)
Requirements specific to the Village of Fontana:
a.
A bufferyard with a minimum opacity of 0.60 along the property borders abutting residentially zoned property shall be provided.
b.
If alcoholic beverages of any kind are to be served on the premises, the owner of the establishment shall first obtain the appropriate license in accordance with Village of Fontana and state regulations.
c.
One sign, with a maximum area of 20 square feet, shall be permitted on the property.
(12)
Requirements specific to the extraterritorial zoning area:
a.
The structure was originally built and occupied as a single-family residence, or prior was to the use as a place of lodging, was converted to use and occupied as a single-family residence.
b.
No more than four bedrooms shall be permitted to be rented to no more than a total of ten tourists or transients within permitted zoning districts; except that within the B-6 zoning district, no more than eight bedrooms shall be permitted to be rented to no more than a total of 20 tourists or transients.
c.
One exterior sign with a maximum area of nine square feet, a maximum height of six feet, and a minimum setback of five feet from any street or highway right-of-way line, a minimum of ten feet from any side or rear property line, and a minimum 50 feet from any intersection.
(13)
Additional requirements within the village and the extraterritorial area:
a.
Application requirements. Applicants for a license to operate a bed and breakfast shall submit a floor plan of the single-family dwelling unit illustrating that the proposed operation will comply with the requirements of this chapter, state building codes, and other applicable village codes and ordinances.
b.
Consideration of issuance. After the application has been filed with the village clerk, the plan commission shall review and provide a recommendation to the village board for a conditional use permit. The plan commission shall hold a public hearing and determine whether any further license shall be issued based upon the public convenience and necessity of the people in the village. In the village's determination of the number of bed and breakfast operations required to provide for such public convenience and necessity, the village board shall consider the effect upon residential neighborhoods, conditions of existing holders of licenses, and the necessity of issuance of additional licenses for public service.
c.
Public nuisance violations. Bed and breakfast operations shall not be permitted whenever the operation endangers, offends, or interferes with the safety or rights of others so as to constitute a nuisance.
d.
Suspension, revocation and renewal. Any license issued under the provisions of this chapter may be revoked by the village board for good cause shown after investigation and opportunity to the holder of such license to be heard in opposition thereto; in such investigation the compliance or noncompliance with the state law and local ordinances, the conduct of the licensee in regard to the public, and other consideration shall be weighed in determination of such issue.
(j)
Commercial indoor lodging. Facilities which provide overnight housing in individual rooms or suites of rooms, each room or suite having a private bathroom. Such land uses may provide in-room or in-suite kitchens, and may also provide indoor recreational facilities for the exclusive use of their customers. Restaurant, lounge, fitness centers, and other on-site facilities available to nonlodgers are considered accessory uses and therefore require review as a separate land use. Commercial indoor lodging land uses shall adhere to the following listed regulations:
(1)
No customer entrance of any kind shall be permitted within 100 feet of a residentially zoned property.
(2)
A bufferyard with a minimum opacity of 0.60 shall be provided along all property abutting residentially zoned property.
(3)
Each and every room must take primary access via an individual interior door, and may not be accessed via an external balcony, porch or deck, except for emergency purposes.
(4)
A minimum of one parking space per bedroom, plus one space for each employee on the largest work shift, shall be provided.
(k)
Boarding house. Any residential use renting rooms which do not contain private kitchen and/or bathroom facilities. Boarding houses shall adhere to the following listed regulations:
(1)
A bufferyard with a minimum opacity of 0.60 shall be provided along all property abutting residentially zoned property.
(2)
Shall only be located in an area of transition from residential land uses to nonresidential land uses, as determined by the zoning administrator.
(3)
A minimum of one parking space per each bedroom for rent, in addition to requirements for principle residents shall be provided.
(l)
Group day care center (9+ children). Centers where qualified persons provide child care services for nine or more children. Examples include day care centers and nursery schools. Such land uses may be operated on a for-profit or a not-for-profit basis and may be operated in conjunction with another principal land use on the same environs, such as a church, school, business, or civic organization. In such instances, group day care centers are considered as accessory uses and therefore require review as a separate land use. Group day care centers shall adhere to the following listed regulations:
(1)
Group day care centers shall not be located within a residential building.
(2)
A bufferyard with a minimum opacity of 0.50 shall be provided along all property abutting residentially zoned property.
(3)
A minimum of one parking space per five students, plus one space for each employee on the largest work shift shall be provided.
(m)
Commercial animal boarding. Facilities where short-term and/or long-term animal boarding is provided, such as nonresidential kennels and stables. Exercise yards, fields, training areas, and trails associated with such land uses are considered accessory to and do not require separate consideration. Commercial animal boarding facilities shall adhere to the following listed regulations:
(1)
Each animal shall be provided with an indoor containment area.
(2)
The minimum permitted size of horse or similar riding animal stall shall be 100 square feet.
(3)
Special events such as shows, exhibitions and contests shall only be permitted when a temporary use permit has been secured.
(4)
A minimum of one parking space per employee on the largest shift, plus one additional space per every ten stalls.
(n)
Indoor maintenance service. Land uses which perform maintenance services, including repair, and contain all operations (except loading) entirely within an enclosed building. Because of outdoor vehicle storage requirements, vehicle repair and maintenance is considered an outdoor maintenance service land use (see subsection (o)). Indoor maintenance land uses shall adhere to the following listed regulation:
(1)
A minimum of one parking space per 250 square feet of primary floor area shall be provided.
(o)
Outdoor maintenance service. Land uses which perform maintenance services, including repair, and have all, or any portion, of their operations located outside of an enclosed building. Such land uses do not include the storage or display of inoperable equipment, or other materials typically associated with a junkyard or salvage yard (see subsection 18-62(d)). Outdoor maintenance services shall adhere to the following listed regulations:
(1)
A bufferyard with a minimum opacity of 0.60 shall be provided along all property abutting residentially zoned property.
(2)
All outdoor activity areas shall be completely enclosed by a minimum six-foot high fence. Such enclosure shall be located a minimum of 50 feet from any residentially zoned property and shall be screened by required bufferyard.
(3)
A minimum of one parking space per 250 square feet of primary floor area, or one space per each employee on the largest shift, whichever is less, shall be provided.
(p)
Vehicle sales. The outdoor display of vehicles for sale or rent and associated sales building. Such land uses also include a repair shop associated with the vehicle display lot. Such land uses do not include the storage or display of inoperative vehicles or equipment, or other materials typically associated with a salvage or junkyard (see subsection 18-62(d)). Vehicles sales land uses shall adhere to the following regulations:
(1)
The outdoor display and sales area shall be calculated as the area that would be enclosed by a required physical separation installed and continually maintained in the most efficient manner which completely encloses all vehicles displayed outdoors.
(2)
A bufferyard with a minimum opacity of 0.60 shall be provided along all property abutting residentially zoned property.
(3)
The display of vehicles shall not be permitted in required landscaped areas or bufferyards.
(4)
The display of vehicles shall not be permitted within required setback areas for the principal structure.
(5)
Display areas shall be separated from any circulation area by a minimum of ten feet. This separation shall be clearly delimited by a physical separation such as a greenway, curb, fence, or line of planters, or by a clearly marked paved area.
(6)
Signs, screening, enclosures, landscaping, or materials being displayed shall not interfere in any manner with either on-site or off-site traffic visibility, including potential vehicle/vehicle and vehicle/pedestrian conflicts.
(7)
Vehicle sales shall be permitted during the entire calendar year; however, if vehicles are removed from the display area, all support fixtures used to display the vehicles shall be removed within ten calendar days of vehicles removal.
(8)
A minimum of one parking space per every 250 square feet of primary floor area shall be provided. In no event shall the display of vehicles reduce or inhibit the use or number of parking stalls provided on the property below what is required by this section. If the number of provided parking stalls on the property is already less than the requirement, such display area shall not further reduce the number of parking stalls already present.
(q)
Adult-oriented land uses.
(1)
Note. The incorporation of this land use into this chapter is designed to reflect the village board's official finding that adult-oriented land uses have a predominant tendency to produce certain undesirable secondary effects on the surrounding community, as has been demonstrated in other similar jurisdictions. Specifically, the village board is concerned with the potential for such uses to limit the attractiveness of nearby locations for new development, the ability to attract and/or retain customers, and the ability to market and sell nearby properties at a level consistent with similar properties not located near such facilities. It is explicitly not the intent to suppress free expression by unreasonably limiting alternative avenues of communication but rather to balance the need to protect free expression opportunities with the need to implement the village's comprehensive plan and protect the character and integrity of its commercial and residential neighborhoods.
(2)
Definitions. As used in this subsection, the following terms shall have the meanings indicated:
a.
Adult-oriented land uses or adult-oriented establishments: Includes, but is not limited to, adult bookstores, adult motion-picture theaters, adult mini motion-picture establishments or adult cabarets. Includes any premises to which public patrons or members are invited or admitted and which are so physically arranged as to provide booths, cubicles, rooms, compartments or stalls separate from the common areas of the premises for the purpose of viewing adult-oriented motion pictures, or wherein an entertainer provides adult entertainment to a member of the public, a patron or a member, whether or not such adult entertainment is held, conducted, operated or maintained for a profit, direct or indirect.
b.
Adult bookstore: An establishment having as a substantial or significant portion of its stock-in-trade, for sale, rent, lease, inspection or viewing, books, films, video cassettes, magazines or other periodicals which are distinguished or characterized by their emphasis on matters depicting, describing or related to specified anatomical areas, as defined below, or an establishment with a segment or section devoted to the sale, rent, or display of such material.
c.
Adult motion-picture theater: An enclosed building with a capacity of 50 or more persons used for presenting materials distinguished or characterized by an emphasis on matters depicting, describing or relating to specified sexual activities or specified anatomical areas, as defined below, for observation by patrons therein.
d.
Adult mini motion-picture theater: An enclosed building with a capacity of 50 or fewer persons used for presenting materials distinguished or characterized by an emphasis on matters depicting, describing or relating to specified sexual activities or specified anatomical areas, as defined below, for observation by patrons therein.
e.
Adult cabaret: A cabaret which features topless dancers, strippers, male or female impersonators, or similar entertainers.
f.
Adult entertainment: Any exhibition of any motion pictures, live performances, display or dance of any type which has as its dominant theme or is distinguished or characterized by an emphasis on an actual or simulated specified sexual activities or specified anatomical areas, as defined below.
g.
Specified sexual activities (simulated or actual):
1.
Showing of human genitals in a state of sexual stimulation or arousal;
2.
Acts of masturbation, sexual intercourse, sodomy, bestiality, necrophilia, sadomasochistic abuse, fellatio or cunnilingus; and/or
3.
Fondling or erotic touching of human genitals, pubic region, buttocks or female breasts.
h.
Specified anatomical areas: Less than completely and opaquely covered human genitals, pubic region, buttocks and female breasts below the point immediately above the top of the areola; or human male genitals in a discernible turgid state, even if opaquely covered.
(3)
Location of adult-oriented establishments.
a.
Adult-oriented establishments shall only be allowed as a conditional use; provided that such establishments are not located within 500 feet of any residential zone, any public or private school, church, religious institution, or any public park, and shall not be located within 500 feet of any other adult-oriented establishment.
b.
Adult-oriented establishments, as defined above, are prohibited in all zoning except the AH-35 Districts.
(4)
A bufferyard with a minimum opacity of 0.60 shall be provided along all property abutting residentially zoned property.
(5)
Exterior building appearance and signage shall be designed to ensure that the use does not detract from the ability of businesses in the vicinity to attract customers nor affect the marketability of properties in the vicinity for sale at their assessed values.
(6)
The distances provided in this section shall be measured in a straight line without regard to intervening structures or objects from the closest point of the structure or portion of the structure occupied or proposed for occupancy by the adult-oriented establishment to the nearest point of the parcel or property or land use district boundary relined from which the proposed land use is to be separated.
(7)
In all zones where adult-oriented establishments are permitted, all regulations and requirements of this chapter must be met. Additionally, all provisions of the zoning district in which the establishment is located must be met.
(8)
The sections of this subsection are declared to be severable. If any section or portion thereof shall be declared by a decision of a court of competent jurisdiction to be invalid, unlawful or unenforceable, such decision shall apply only to the specified section or portion thereof directly specified in the decision and not affect the validity of all other provisions, sections or portions thereof of the subsection, which shall remain in full force and effect.
(9)
A minimum of four parking space per 1,000 square feet of primary floor area or one space per person at the maximum capacity of the establishment (whichever is greater) shall be provided.
(r)
Resort hotel. Facilities which provide transient overnight housing in individual rooms or suites of rooms, each room or suite having a private bathroom. Resort hotel facilities may include, but are not limited to, the following additional uses or activities: commercial indoor lodging, indoor entertainment, outdoor entertainment, gate shows, indoor sales or service, personal or professional service, artisan studio, office, group day care center, commercial animal boarding, passive outdoor recreation, active outdoor recreation, intensive outdoor recreation, lake-related recreation, off-site parking, and limited duration special activities and events. Resort hotels may include, but are not limited to, the following facilities: meeting rooms, game rooms, restaurants, indoor and outdoor swimming pools, salons, health spas, studios, auditoriums, night clubs, lounges, convention and exhibition halls, bowling alleys, cinemas, theaters, gift shops, travel and ticket agencies, and other similar facilities designed primarily as adjuncts to and principally serving the occupants and guests of the resort. Resort hotels shall adhere to the following listed regulations:
(1)
Resort hotels shall not be used as primary or secondary residences.
(2)
Resort hotels shall adhere to the regulations of the Resort Business District (see section 18-40).
(s)
Vacation rental home. A single-family detached dwelling unit made available to a single party for overnight, weekend, or weekly stays by paying guests which may or may not be owner occupied for part of the year. These uses may include timeshare units. Vacation rental homes shall adhere to the following listed regulations:
(1)
Permitted by right: Village Center Zoning District, Abbey Springs Subdivision, and the Resort Business Subdistricts: The Abbey Resort, Abbey Ridge, and Abbey Villas; permitted as conditional use in the Neighborhood Business and Community Business Zoning Districts.
a.
Land use requirement: Vacation rental homes shall only be located as a commercial land use within a single-family detached dwelling unit as defined in subsection 18-55(a).
b.
Annual village license required: Each vacation rental home hall operate only during the valid period of an annual Village of Fontana vacation rental home license for each calendar year. Operating a vacation rental home without a current version of a valid license shall be considered a violation of this zoning ordinance, and subject to the penalties of section 18-257. The following information shall be provided on an annual basis, prior to issuance of said annual Village of Fontana vacation rental home license:
1.
Completed Village of Fontana vacation rental home application, which included the property owner name, address, and phone number; the designated operator's name, address, and phone number; and the period of operation;
2.
A current floor plan for the vacation rental home at a minimum scale of one-inch equals four feet, and site plan of the property at a minimum scale of one-inch equals ten feet showing on-site parking spaces and trash storage areas;
3.
General building code inspection by village, and submittal of official building code inspection report with no outstanding compliance orders remaining;
4.
Fire code inspection by village, and submittal of official fire code inspection report with no outstanding compliance orders remaining;
5.
Proof of valid property and liability insurance for the dwelling unit;
6.
State of Wisconsin tourist rooming house license;
7.
Seller's permit issued by the Wisconsin Department of Revenue;
8.
Village of Fontana room tax permit; and
9.
Payment of an administrative fee, set annually by the village board, to cover the costs to the village for administering the above.
The Village of Fontana vacation rental home license shall be issued with the completion of the above requirements.
c.
Property management requirements: Each vacation rental home shall be managed consistent with the following requirements:
1.
Similar facilities in which single-family detached homes are available for a minimum seven consecutive days, and up to 180 days, are a different land use that fall within the tourist rooming house land use category. See subsection 18-64(x).
2.
The maximum number of occupants shall not exceed the total number licensed by the State of Wisconsin or two per bedroom plus two additional occupants, whichever is less.
3.
The vacation rental home shall be operated by the property owner or by a property manager explicitly designated in the valid Fontana vacation rental home as the "designated operator".
4.
The property owner's and the designated operator's names, addresses, and 24-hour phone numbers shall be provided in the Village of Fontana vacation rental home application and shall be updated within 24 hours upon any change in the property manager or the property manager contact information.
5.
The designated operator must reside within, or have their business located within, 25 miles of the vacation rental home parcel.
6.
The designated operator must be available by phone 24 hours, seven days a week, during the period of operation designated in the Fontana vacation rental home application.
7.
Each vacation rental home shall provide and maintain a guest register and shall require all guests to register their true names and addresses before allowing occupancy. The guest register shall be kept intact and available by the designated operator for inspection by representatives of the village for at least one year from the day of the conclusion of the period of operation.
8.
Each vacation rental home shall maintain the following written business record for each rental of the vacation rental home: the true names and addresses of any person renting the property, the dates of the rental period (which must be a minimum of seven consecutive days), and the monetary amount or consideration paid for the rental. The business record shall be kept intact and available by the designated operator for inspection by the representatives of the village for at least one year from the day of the conclusion of the period of operation.
d.
Property operational requirements: Each vacation rental home shall be operated per the following requirements:
1.
The "requirements for vacation rental home guests" form provided by the Village of Fontana to summarize village requirements for vacation rental homes, and the site plan for the subject property clearly depicting guest parking spaces and the rear yard, shall be posted on the inside of the front door of each vacation rental home throughout its period of operation.
2.
Parking. All vacation rental homes outside of the Abbey Resort Subdistrict (18-40(I)), Abbey Villas Subdistrict (18-40(II)), Abbey Ridge Subdistrict (18-40(III)), and Abbey Springs Subdivision are subject to the following requirements:
i.
A minimum of two off-street parking spaces shall be provided on the subject property for each vacation rental home. If the vacation rental home provides three or more bedrooms, and additional on-site parking space is required for each additional bedroom over two.
ii.
All guest parking for vehicles and trailers shall be within a parking space designated on the site plan, on an area paved with concrete or asphalt.
iii.
All guest vehicles and trailers may only park on-site. Street parking for guests is not permitted.
iv.
No parking is permitted on gravel, lawn, or planter bed areas.
3.
Site appearance requirements:
i.
Aside from a changing mix of guests and their vehicles, there shall be no evidence of the property being used as a vacation rental home visible on the exterior of the subject property.
ii.
No exterior signage related to the vacation rental home is permitted, other than the property address.
iii.
No outdoor storage related to the vacation rental home land use is permitted, except for typical residential recreational equipment, seating, and outdoor cooking facilities which are permitted only within the rear yard.
iv.
No recreational vehicles, camper, tent, or other temporary lodging arrangement shall be permitted to accommodate guests.
4.
Neighborhood impact requirements:
i.
No outdoor activity shall occur between the hours of 10:00 p.m. and 7:00 a.m.
ii.
At all times, no noise, lighting, odor or other impacts from the subject property shall be detectable at the property line at levels exceeding the requirements of article 13 of the Fontana Zoning Ordinance.
iii.
No vehicular traffic shall be generated by the vacation rental home at levels exceeding those typical for a detached single-family dwelling unit.
5.
Vacation rental home advertising:
i.
No outdoor advertising is allowed on the subject property.
ii.
The vacation rental home shall not be advertised for availability in any form of media unless the required Village of Fontana vacation rental home license has been issued.
e.
Penalties and license revocation:
1.
Violations of the requirements for vacation rental homes, the provisions of the vacation rental home license, and all other requirements of the zoning ordinance are subject to separate daily fines per section 18-257. Violations will be issued to, and will be the responsibility of, the property owner.
2.
The annual vacation rental home license may be revoked for more than two violations of the requirements of the license, the requirements specific to vacation rental homes, the license, or the remainder of zoning code.
(t)
Outdoor boat display and sales. Land uses where the outdoor display of boats on stands, trailers, or pedestals is conducted outside of an enclosed building. This land use is limited to boats as defined in section 18-13. Outdoor boat display and sales land uses shall adhere to the following regulations:
(1)
Requires a limited conditional use permit specifying the following:
a.
Granted to a specific operator.
b.
Granted up to a maximum of five years.
c.
The maximum number of boats shall be established by the limited conditional use.
(2)
The following watercraft and equipment may not be displayed outside:
a.
Personal watercraft (i.e., jet skis).
b.
Manually propelled (i.e., canoe, kayak, raft, inflatable paddle board, paddle boats, surf boards).
c.
Empty trailers and/or other boat accessory equipment.
(3)
Boat display area must be located on a gravel surface or be paved with concrete or asphalt.
(4)
Boat display land uses may be established without a principal building on-site.
(5)
Signage is limited to a monument sign or a temporary business sign. Signs on individual boats shall be less than one square foot.
(Ord. No. 090412-02, § 1, 9-4-2012; Ord. No. 061118-02, § 2, 6-11-2018; Ord. No. 030519-01, § 5, 3-5-2019; Ord. No. 040419-01, § II, 4-4-2019; Ord. No. 090919-03, § 1, 9-9-2019; Ord. No. 050123-02, § 1, 5-1-2023)
(a)
Campground. Facilities designed for overnight accommodation of persons in tents, travel trailers, recreational vehicles, or other mobile or portable shelters. Campgrounds shall adhere to the following listed regulations:
(1)
A bufferyard with a minimum opacity of 0.70 shall be provided along all property abutting residentially zoned property.
(2)
A minimum of 1½ parking spaces shall be provided per campsite.
(b)
Passive outdoor recreation. Recreational land uses, located on public or private property, where passive recreational activities are provided. Passive outdoor recreation land uses may include, but are not limited to, arboretums, natural areas, wildlife areas, hiking trails, bike trails, cross country ski trails, horse trails, picnic areas, picnic shelters, botanical gardens, fishing areas, and similar land uses.
(1)
A minimum of one parking space per four expected patrons at maximum capacity shall be required.
(c)
Active outdoor recreation. Recreational land uses, located on public or private property, where low-impact, active recreational activities are provided. Active outdoor recreation land uses may include, but are not limited to, play courts (e.g., tennis and basketball courts), playfields (e.g., ball diamonds, football fields, and soccer fields), neighborhood parks, tot lots, swimming beach areas, fitness courses, golf courses, and incidental land uses such as concession stands, public restrooms, and beach shower facilities. Note that high-attendance facilities oriented to nonresident users or attendees and intensively lit tournament-oriented outdoor facilities are considered intensive outdoor activity land uses (see subsection 18-57(d)). Active outdoor public recreation land uses shall adhere to the following listed regulations:
(1)
A bufferyard with a minimum opacity of 0.60 shall be provided along all property abutting residentially zoned property and for any facility requiring night lighting.
(2)
All structures and active recreational areas shall be located a minimum of 50 feet from any residentially zoned property.
(3)
Facilities serving a regional or community-wide function shall provide an off-street passenger loading area if the majority of the users will be children.
(4)
A minimum of one parking space per every four expected patrons at maximum capacity shall be provided; however, the following specific parking requirements may apply:
a.
Tennis court: Two spaces per court.
b.
Golf course: Thirty-six spaces per nine holes, plus one space per employee on the largest work shift, plus 50 percent of spaces otherwise required for any accessory uses (e.g., bars, restaurant).
(d)
Reserved.
(e)
Lake-related recreation. Lake-related recreational facilities such as marinas and yacht clubs, bait shops, boat launching ramps, boat slips, boat storage, docking facilities, liveries, and boat repair and maintenance facilities, including gasoline pumps for marine use. Lake-related recreation land uses shall adhere to the following listed regulations:
(1)
Outdoor lighting installations shall be so located and shielded that no objectionable glare or excessive illumination is cast upon adjoining property.
(2)
A minimum of one parking space per every four expected patrons at maximum capacity shall be provided.
(Ord. No. 090412-02, § 1, 9-4-2012; Ord. No. 050123-02, § 2, 5-1-2023)
(a)
Indoor institutional. Indoor public and not for profit recreational facilities (such as gyms, indoor swimming pools, libraries, museums and community centers), schools, churches, nonprofit clubs, nonprofit fraternal organizations, convention centers, jails, prisons, and similar land uses. Indoor institutional land uses shall adhere to the following listed regulations:
(1)
An off-street passenger loading area shall be provided if the majority of the users will be children (as in the case of a school, church, library, or similar land use).
(2)
All structures shall be located a minimum of 50 feet from any residentially zoned property.
(3)
Generally, a minimum of one space per three expected patrons at maximum capacity shall be provided; however, the following specific requirements may apply:
a.
Churches and auditoriums: One space per three seats at the maximum capacity.
b.
Community or recreation center: One space per 250 square feet of primary floor area, or one space per four patrons to the maximum capacity, whichever is greater, plus one space per employee on the largest work shift.
c.
Funeral home: Six spaces per 1,000 square feet of principal floor area, or one space for every four chapel seats, whichever is greater.
d.
Library or museum: One space per 250 square feet of primary floor area, plus one space per employee on the largest work shift.
e.
Elementary and secondary schools: Two spaces per classroom (schools with auditoriums shall be governed by requirements for auditoriums).
f.
Post secondary school: One space per three students at peak hour attendance.
(b)
Outdoor institutional. Privately held permanently protected green space areas, cemeteries, and open grassed areas not associated with any particular recreational. Outdoor institutional land uses shall adhere to the following listed regulations:
(1)
All structures shall be located a minimum of 50 feet from any residentially zoned property.
(2)
No parking is required for outdoor open space institutional land uses; however, for uses accessory to cemeteries (e.g., cemeteries or mausoleums), parking may be required per the recommendation of the plan commission or zoning administrator.
(c)
Public service and utilities. All village, county, state, and federally owned facilities (except those otherwise treated in this chapter), emergency service facilities (e.g., fire departments and rescue operations), wastewater treatment plants, public and/or private utility substations, water towers, utility and public service related distribution facilities, public parking lots, and similar land uses. Public service and utility land uses shall adhere to the following listed regulations:
(1)
All structures shall be located a minimum of 20 feet from any residentially zoned property.
(2)
Outdoor storage areas shall be located a minimum of 50 feet from any residentially zoned property.
(3)
The exterior of all buildings shall be compatible with the exteriors of surrounding buildings.
(4)
All outdoor storage areas adjoining a residentially zoned property shall install and continually maintain a bufferyard with a minimum opacity of 0.60.
(5)
A minimum of one parking space per employee on the largest work shift shall be provided, plus one space per company vehicle normally stored or parked on the premises.
(d)
Institutional residential. A form of residential development designed to accommodate residential uses such as: senior housing, retirement homes, assisted living facilities, nursing homes, hospices, group homes, convents, monasteries, dormitories, nursing homes, convalescent homes, limited care facilities, rehabilitation centers, and similar land uses not considered to be community living arrangements (see subsections 18-58(e), (f), (g)). Institutional residential land uses shall adhere to the following listed regulations:
(1)
No individual lots are required, although the development shall contain a minimum of 800 square feet of gross site area for each occupant of the development.
(2)
Project shall provide an off-street passenger loading area at a minimum of one location within the development.
(3)
A minimum of one parking space for every five beds or individual living unit, plus one pace for each two employees shall be provided.
(e)
Community living arrangement (1—8 residents). Facilities provided for in Wis. Stats. § 46.03(22), including child welfare agencies, group homes for children, foster homes, treatment foster homes, adult family homes, and community-based residential facilities. Community living arrangements do not include group day care centers, nursing homes, hospitals, prisons, or jails (see subsection 18-58(d)). Community living arrangement facilities are regulated depending upon their capacity as provided for in Wis. Stats. § 62.23(7)(i), provided any such regulations do not violate federal or state housing or anti-discrimination laws. Community living arrangements housing up to eight residents shall adhere to the following listed regulations:
(1)
No community living arrangement shall be established within 2,500 feet of any other such facility regardless of its capacity unless the plan commission and village board agree to a reduction in spacing.
(2)
The applicant shall demonstrate that the total capacity of all community living arrangements (of all capacities) in the village shall not exceed one percent of the village's population (unless specifically authorized by the village board following a public hearing).
(3)
Foster homes housing four or fewer children and licensed under Wis. Stats. § 48.62, shall not be subject to subsection (1), above, and shall not be subject to or count toward the total arrived at in subsection (2), above.
(4)
A minimum of three parking spaces shall be provided.
(f)
Community living arrangement (9—15 residents). See description under subsection (e), above. Community living arrangements housing nine to 15 residents shall adhere to the following listed regulations:
(1)
No community living arrangement shall be established within 2,500 feet of any other such facility, regardless of capacity unless the plan commission and village board agree to a reduction in spacing.
(2)
The applicant shall demonstrate that the total capacity of all community living arrangements (of all capacities) in the village shall not exceed one percent of the village's population (unless specifically authorized by the village board following a public hearing).
(3)
A minimum of three parking spaces shall be provided, plus one space for every three residents over eight residents.
(g)
Community living arrangement (16+ residents). See description under subsection (e), above. Community living arrangements housing 16 or more residents shall adhere to the following listed regulations:
(1)
No community living arrangement shall be established within 2,500 feet of any other such facility, regardless of capacity unless the plan commission and village board agree to a reduction in spacing.
(2)
The total capacity of all community living arrangements (of all capacities) in the village shall not exceed one percent of the village's population (unless specifically authorized by the village board following a public hearing).
(3)
A minimum of three parking spaces shall be provided, plus one space for every three residents over eight residents.
(Ord. No. 090412-02, § 1, 9-4-2012)
(a)
Light industrial. Industrial land uses where all operations (with the exception of loading operations) are conducted entirely within an enclosed building. Light industrial uses do not emit odor, noise, heat, vibration and radiation which are detectable at the property line; do not pose a significant safety hazard (such as danger of explosion); and comply with applicable performance standards in article X. Light industrial land uses may conduct indoor sales as an accessory use provided that the requirements of subsection 18-64(p) are complied with. Light industrial land uses shall adhere to the following listed regulations:
(1)
A bufferyard with a minimum opacity of 0.80 shall be provided along all property abutting residentially zoned property.
(2)
All activities, except loading and unloading, shall be conducted entirely within the confines of a building.
(3)
In no instance shall loading and unloading areas be located within a required setback or bufferyard.
(4)
A minimum of two parking spaces per each employee on the largest work shift shall be provided.
(b)
Heavy industrial. Industrial land uses where operations may be wholly or partially located outside of an enclosed building. Heavy industrial uses have the potential to create certain nuisances which are detectable at the property line and may involve materials which pose a significant safety hazard. Examples of heavy industrial land uses include production of meat, paper, pulp, paperboard, chemicals, allied products (except drug producers), fertilizers, petroleum, coal, asphalt, concrete, cement, stone, clay, glass, primary metal, heavy machinery, electrical distribution equipment, electrical industrial apparatus, or transportation vehicles. Heavy industries may also include, but are not limited to, tanneries, commercial sanitary sewage treatment plants, railroad switching yards, recycling facilities not involving the on-site storage of salvage materials, and large-scale alcoholic beverage producers exceeding the production limits in Wis. Stats. ch. 125. Heavy industrial land uses shall adhere to the following listed regulations:
(1)
A bufferyard with a minimum opacity of 1.0 shall be provided along all borders of the property abutting property that is not zoned RP, with the exception of adjacent land held in permanent open space.
(2)
All outdoor activity areas shall be located a minimum of 100 feet from residentially zoned property.
(3)
No equipment or materials shall be stacked or otherwise stored so as to be visible over bufferyard screening elements.
(4)
In no instance shall a heavy industrial land use exceed performance standards listed in article XIII.
(5)
A minimum of two parking spaces per each employee on the largest work shift shall be provided.
(c)
Production greenhouse. Any business whose principal activity is the growing and wholesaling of plants or plant byproducts (not including fruits and vegetables) that are either grown or stored within an enclosed building or structure constructed chiefly of glass or glass-like material, cloth, or other transparent material. Such uses also often involve the seasonal display of plants and related products outdoors. Production greenhouses shall adhere to the following listed regulations:
(1)
A bufferyard with a minimum opacity of 0.60 shall be provided along all borders of outdoor display areas abutting residentially zoned property.
(2)
The outdoor display of items shall not be permitted in required setbacks, bufferyards or landscaped areas.
(3)
Storage and/or outdoor display areas shall be separated from any vehicular parking or circulation area by a minimum of ten feet. This separation shall be clearly distinguished by a physical feature or barrier such as a greenway, curb, fence or line of planters, or by a clearly marked paved area.
(4)
Signs, screening, enclosures, landscaping, or materials being displayed shall not interfere in any manner with either on-site or off-site traffic visibility, including potential traffic/traffic and traffic/pedestrian conflicts.
(5)
A minimum of one parking space per every 250 square feet of primary floor area shall be provided. In no event shall the display of items reduce or inhibit the use or number of parking stalls provided on the property below what is required by this section. If the number of provided parking stalls on the property is already less than the requirement, such display area shall not further reduce the number of parking stalls already present.
(d)
Indoor food production. Any business whose principal activity is the production and wholesaling of fruits and vegetables that are grown on-site within an enclosed building or structure. Such uses also often involve the seasonal display of plants and related products outdoors. Indoor food production also includes, but is not limited to, the farming of aquatic organisms (plants and animals) under controlled conditions, and which is located entirely within an enclosed building and utilizes recirculating (closed) system technology. Such operations may also incorporate aquaponics, which is the symbiotic cultivation of plants and aquatic organisms in a reticulating system. Indoor food production land uses shall adhere to the following listed regulations:
(1)
All outdoor storage areas shall be completely enclosed by any permitted combination of buildings, structures, walls, and/or fencing. Such walls and fencing shall be a minimum of eight feet in height and shall be designed to completely screen all stored materials or products from view of non-industrialized areas at an elevation of five feet above the grade of all adjacent properties and rights-of-way. Said walls or fencing shall be screened from residentially zoned property by a bufferyard with a minimum opacity of 0.80.
(2)
Storage and/or outdoor display areas shall be separated from any vehicular parking or circulation area by a minimum of ten feet. This separation shall be clearly distinguished by a physical feature or barrier such as a greenway, curb, fence or line of planters, or by a clearly marked paved area.
(3)
All outdoor storage areas shall be located no closer to a residentially zoned property than the required minimum setback for buildings on the subject property.
(4)
Materials being stored shall not interfere in any manner with either on-site or off-site traffic visibility, including potential vehicle/vehicle and vehicle/pedestrian conflicts.
(5)
Indoor aquaculture operations shall be connected to the municipal water and sanitary sewer system and all wastewater shall be discharged to the municipal sanitary sewer system.
(6)
Prior to the issuance of a conditional use permit, applicants wishing to establish indoor aquaculture operations shall prepare a report outlining the estimated average daily water usage and quantity of wastewater discharge. Such report shall be reviewed and approved by the public works director.
(7)
On-site processing of seafood is permitted provided the activity is conducted entirely within an enclosed building and no odors are detectable from the property line.
(8)
The on-site retail sale of seafood or vegetables shall be considered incidental indoor sales subject to the provisions of subsection 18-64(p); provided the area devoted to sales does not exceed 25 percent of the total area of the building(s) within which the operation is located. Retail areas that exceed 25 percent of the total area of the building(s) within which the operation is located shall be considered an indoor sales and service principal land use.
(9)
On-site composting shall be permitted; provided compost areas are fully screened on all four sides, and composting facility complies with all county, state and federal rules, regulations and permitting requirements.
(10)
The following specific parking requirements shall apply. In no event shall the storage of items reduce or inhibit the use or number of parking stalls provided on the property below what is required by this section. If the number of provided parking stalls on the property is already less than the requirement, such storage area shall not further reduce the number of parking stalls already present:
a.
Indoor aquaculture: One space for each 250 square feet of primary floor area.
b.
Wholesale greenhouses: Four spaces for every 1,000 square feet of primary floor area, plus two spaces per each employee on the largest work shift.
(e)
Communication tower. Any structure that is designed and constructed for the purpose of supporting one or more antennas for communication purposes such as cellular telephones or similar, including self-supporting lattice towers, guyed towers, or monopole towers. Height shall be measured from finished grade to the highest point on the tower or other structure, including the base pad. This definition includes the mobile service support structure, supports, and equipment buildings.
Communication towers shall adhere to performance standards and requirements included in section 18-217.
(f)
Large solar energy system. A large energy system that converts solar energy to usable thermal, mechanical, chemical, or electrical energy, where such solar energy system is typically a principal use of the land and designed primarily to generate energy for commercial sale off-site.
(1)
Rooftop, ground-mounted, and building-mounted large solar energy systems shall comply with the height limits and minimum required yards for principal structures.
(2)
Large solar system structures shall be finished in a rust-resistant, non-obtrusive finish and color that is nonreflective.
(3)
All electrical connections shall be located underground or within a building.
(4)
No large solar energy system shall be lighted unless required by the Federal Aviation Administration.
(5)
Clearing of natural vegetation for the purposes of installing a large solar energy system shall be limited to that which is necessary for the construction, operation and maintenance of the large solar energy system and as otherwise prescribed by applicable laws, regulations and ordinances.
(6)
All access doors or access ways and electrical equipment shall be lockable.
(7)
A large solar energy system shall require a building permit before installation. Building permit applications shall include the following information in addition to that required by the building code:
a.
A site plan drawn to scale showing the location of the proposed large solar energy system and per the requirements of section 18-245.
b.
Elevations of the site drawn to scale showing the height, design, and configuration of the large solar energy system and the heights of all existing structures, buildings and electrical lines in relation to property lines and their distance from the small solar energy system.
c.
A standard foundation design along with specifications for the soil conditions at the site.
d.
Specific information on the type, size, rated power output, performance, and safety characteristics of the system, including the name and address of the manufacturer, model and serial number.
e.
A description of emergency and normal shutdown procedures.
f.
A line drawing of the electrical components of the system in sufficient detail to establish that the installation conforms to all applicable electrical codes and this subsection.
g.
Evidence that the provider of electrical service to the property has been notified of the intent to install an interconnected electricity generator, except in cases where the system will not be connected to the electricity grid.
h.
Evidence of compliance with Federal Aviation Administration requirements.
(8)
The requirements of Wisconsin Statutes, including but not limited to, Wis. Stats. §§ 66.0401 and 66.0403, shall apply to all large solar energy systems.
(g)
Large wind energy system. A large wind energy system is one or more turbine which will be used primarily to generate power for off-site consumption, or any turbine with a rating in excess of 60 kWh. Large wind energy systems shall adhere to the following listed standards:
(1)
No large wind energy system shall be erected on any parcel less than ten acres in size.
(2)
The total height of a large wind turbine shall not exceed 175 feet.
(3)
Turbines shall be set back from the nearest property line and public road right-of-way not less than 1.1 times the total height.
(4)
No turbine shall be located within 1,000 feet of a property line of a platted subdivision, park, church or school.
(5)
A minimum of two parking spaces shall be provided for each employee on the largest work shift plus vehicle needed for ongoing maintenance.
(6)
Design standards.
a.
The design of the tower supporting each turbine shall be of a monopole or freestanding design without guy wires.
b.
The minimum height of the lowest extent of a turbine blade shall be 30 feet above the ground or 30 feet above the maximum permitted height of a principal structure within 100 feet from the tower.
c.
No tower shall have a climbing apparatus within 12 feet of the ground. All access doors or access ways to towers and electrical equipment shall be lockable.
d.
No turbine shall exceed 70 dBA as measured at the property line or 50 dBA as measured at the nearest adjacent residentially zoned property or neighboring inhabitable building.
e.
Each turbine shall be finished in a rust-resistant, non-obtrusive finish and color that is nonreflective.
f.
Turbines shall not be lighted unless required by the FAA.
g.
Signs of any kind or nature whatsoever are not permitted on any turbine.
h.
All electrical connections shall be underground and comply with all applicable codes; public utility requirements; PSC 119 "Rules for Interconnecting Distributed Generation Facilities;" PSC Forms 6027 and 6028 "Standard Distributed Generation Application Form;" and PSC Forms 6029 and 6030, "Distributed Generation Interconnection Agreement."
i.
Each turbine shall be sited in a manner that does not result in significant shadowing or flicker impacts. The applicant has the burden of proving that this effect does not have significant impact on neighboring or adjacent uses either through siting or mitigation.
j.
Clearing of natural vegetation shall be limited to that which is necessary for the construction, operation and maintenance of the wind energy system and its various components, and as otherwise prescribed by applicable laws, regulations and ordinances.
(7)
Conditional use permit application requirements. Conditional use applications for a large wind energy system shall include the following information in addition to that required under section 18-246:
a.
Site plan to scale showing the location of the proposed wind energy system and the locations of all existing buildings, structures, public rights-of-way and property lines along with distances.
b.
Elevations of the site to scale showing the height, design and configuration of the wind energy system and the height and distance to all existing structures, buildings and electrical lines in relation to property lines.
c.
Standard drawings and an engineering analysis of the systems tower including weight capacity.
d.
A standard foundation design along with soil conditions and specifications for the soil conditions at the site.
e.
Specific information on the type, size, rotor material, rated power output, performance, safety and noise characteristics of the system including the name and address of the manufacturer, model and serial number.
f.
Emergency and normal shutdown procedures.
g.
A line drawing of the electrical components of the system in sufficient detail to establish that the installation conforms to all applicable electrical codes.
h.
Evidence that the provider of electrical service of the property has been notified of the intent to install an interconnected electricity generator unless the system will not be connected to the electricity grid.
i.
Sound level analysis prepared by the wind turbine manufacturer or qualified engineer.
j.
Estimated cost to physically remove the turbine to comply with surety standards.
k.
Evidence of compliance with Federal Aviation Administration requirements.
l.
Liability insurance coverage in the amount of $1,000,000.00 of which the Village of Fontana shall be the certificate holder.
m.
Discontinuance of operation and abandonment.
1.
At such time that a large wind energy system is scheduled to be discontinued, the applicant shall notify the zoning administrator by certified U.S. Mail of the proposed date of discontinuance of operation.
2.
The owner shall physically remove turbine(s) within 120 days of discontinuance of operation. This period may be extended at the request of the owner and the discretion of the village board. Physically remove shall mean removal of the wind turbines, towers, and related above grade structures and restoration of the location of the wind energy system to its natural condition, except that any landscaping, grading or below grade foundation may remain in the after conditions.
3.
In the event that an applicant fails to give such notice, the system shall be considered abandoned or discontinued if the system is out of service for a continuous period of 120 days. After the 120 days of inoperability, the zoning administrator may issue a notice of abandonment to the owner of the wind energy system. The owner shall have the right to respond to the notice of abandonment within 30 days from notice receipt date. The zoning administrator shall withdraw such notice if the owner provides information that demonstrates the wind energy system has not been abandoned.
4.
If the owner fails to respond to the notice of abandonment or if after review by the zoning administrator it is determined that the wind energy system has been abandoned or discontinued, the owner of the wind energy system shall remove the wind turbine, tower and related above grade structures at the owner's expense within 90 days of receipt of the notice of abandonment. If the owner fails to physically remove the wind energy system after the notice of abandonment procedure, the village or their designee shall have the authority to enter the subject property and physically remove the wind energy system.
5.
The village shall have the authority to require the applicant to provide a form of surety (i.e., post a bond, letter of credit or establish an escrow account or by other means) at the time of construction to cover costs associated with the removal in the event the village must remove the large wind energy system. The applicant shall submit a fully inclusive estimate of the costs associated with the removal, prepared by a qualified engineer. The amount shall include a mechanism to accommodate the rate of inflation over 15 years.
(Ord. No. 090412-02, § 1, 9-4-2012; Ord. No. 020623-02, § 18, 2-7-2023)
(a)
Indoor storage and wholesaling. Land uses primarily oriented to the receiving, holding and shipping of packaged materials for a single business or group of businesses. With the exception of loading and parking facilities, such land uses are contained entirely within an enclosed building. Indoor storage and wholesaling land uses may include, but are not limited to, conventional warehouse facilities, long-term indoor storage facilities, and joint warehouse and storage facilities. Retail outlets associated with this use shall be considered accessory uses per subsection 18-64(p). Indoor storage and wholesaling uses shall adhere to the following standard:
(1)
A minimum of two parking spaces per each employee on the largest work shift, plus four spaces for every 1,000 square feet of primary floor area shall be provided.
(b)
Outdoor storage and wholesaling. Land uses are primarily oriented to the receiving, holding and shipping of packaged materials for a single business or group of businesses. Such a land use, in which any activity beyond loading and parking is located outdoors, is considered an outdoor storage and wholesaling land use. Outdoor storage and wholesaling land uses may include, but are not limited to, contractors' storage yards, equipment yards, lumber yards, coal yards, landscaping material yards, construction material yards, and shipping material yards. Such land uses do not include the storage of inoperable vehicles or equipment, or other materials typically associated with a junkyard or salvage yard (see subsection 18-62(d)). Outdoor storage and wholesaling land uses shall adhere to the following listed regulations:
(1)
All outdoor storage areas shall be completely enclosed by any permitted combination of buildings, structures, walls and fencing. Such walls and fencing shall be a minimum of eight feet in height and shall be designed to completely screen all stored materials from view from non-industrialized areas at an elevation of five feet above the grade of all adjacent properties and rights-of-way. Said walls or fencing shall be screened from residentially zoned property by a bufferyard with a minimum opacity of 0.80.
(2)
The storage of items shall not be permitted in required frontage landscaping areas or bufferyards.
(3)
Storage areas shall be separated from any vehicular parking or circulation area by a minimum of ten feet. This separation shall be clearly delimited by a physical separation such as a greenway, curb, fence, or line of planters, or by a clearly marked paved area.
(4)
Materials being stored shall not interfere in any manner with either on-site or off-site traffic visibility, including potential vehicle/vehicle and vehicle/pedestrian conflicts.
(5)
A minimum of two parking spaces per each employee on the largest work shift, plus four spaces for every 1,000 square feet of primary floor area shall be provided. In no event shall the storage of items reduce or inhibit the use or number of parking stalls provided on the property below what is required by this section. If the number of provided parking stalls on the property is already less than the requirement, such storage area shall not further reduce the number of parking stalls already present.
(c)
Personal storage facility. Land uses oriented to the indoor storage of items entirely within partitioned buildings having an individual access to each partitioned storage area (also known as "mini-warehouses"). Such storage areas may be available on either a condominium or rental basis. Personal storage facilities shall adhere to the following listed regulations:
(1)
A bufferyard with a minimum opacity of 0.80 shall be provided along all property borders abutting residentially zoned property; and
(2)
The facility shall be designed so as to minimize adverse visual impacts on nearby developments. The color, exterior materials, and orientation of proposed buildings and structures shall complement surrounding development; and
(3)
No electrical power shall be run to the storage facilities, except for exterior lighting; and
(4)
A minimum of two parking spaces per each employee on the largest work shift, plus four spaces for every 1,000 square feet of primary floor area shall be provided; and
(5)
An on-site caretaker's residence may be included with an approved conditional use permit.
(Ord. No. 090412-02, § 1, 9-4-2012; Ord. No. 100421-02, § 1, 10-4-2021)
(a)
Transit center or park and ride. A building, structure, and/or area designed and used for the purpose of loading, unloading, or transferring passengers or accommodating the movement of passengers from one mode of transportation to another. Examples include, but are not limited to, bus stations, train stations, and park and ride stations. Transit centers or park and ride facilities shall adhere to the following listed regulations:
(1)
A bufferyard with a minimum opacity of 1.0 shall be provided along all property borders abutting residentially zoned property.
(2)
All buildings, structures, outdoor storage and any other activity areas, except employee and passenger parking, shall be located a minimum of 100 feet from all lot lines abutting residentially zoned property.
(3)
Sufficient parking shall be provided to accommodate parking needs.
(b)
Distribution center. Facilities oriented to the short-term indoor storage and possible repackaging and reshipment of materials involving the activities and products of a single user. Retail outlets associated with this use shall be considered accessory uses per subsection 18-64(p). Distribution centers shall adhere to the following listed regulations:
(1)
A bufferyard with a minimum opacity of 1.00 shall be provided along all property borders abutting residentially zoned property.
(2)
All buildings, structures, outdoor storage areas, and any other activity areas shall be located a minimum of 100 feet from all lot lines abutting residentially zoned property.
(3)
In no instance shall activity areas be located within a required frontage landscaping or bufferyard areas.
(4)
A minimum of two parking spaces per each employee on the largest work shift, plus four spaces for every 1,000 square feet of primary floor area shall be provided.
(c)
Freight terminal. Land and buildings representing either end of one or more truck carrier line(s) which may have some or all of the following facilities: yards, docks, management offices, storage sheds, buildings and/or outdoor storage areas, freight stations, and truck maintenance and repair facilities, principally serving several or many businesses requiring trans-shipment. Freight terminals shall adhere to the following listed regulations:
(1)
A bufferyard with a minimum opacity of 1.00 shall be provided along all property borders abutting residentially zoned property.
(2)
All buildings, structures, outdoor storage areas, and any other activity areas shall be located a minimum of 100 feet from all lot lines abutting residentially zoned property.
(3)
In no instance shall activity areas be located within a required frontage landscaping or bufferyard areas.
(4)
A minimum of two parking spaces per each employee on the largest work shift, plus four spaces for every 1,000 square feet of primary floor area shall be provided.
(d)
Airport. Transportation facilities providing takeoff, landing, servicing, storage, and other services to any type of air transportation. The operation of any type of air vehicle (including ultralight aircraft, hang gliders, parasails, and related equipment, but excepting model aircraft) within the jurisdiction of this chapter shall occur only in conjunction with an approved airport. Airports shall adhere to the following listed regulations:
(1)
All buildings, structures, outdoor airplane or helicopter storage areas, and any other activity areas shall be located a minimum of 100 feet from all lot lines.
(2)
A bufferyard with a minimum opacity of 1.00 shall be provided along all borders of the property not otherwise completely screened from activity areas by buildings or structures.
(3)
All airports shall adhere to applicable regulations of the bureau of aeronautics.
(4)
A minimum of two parking spaces per each employee on the largest work shift, plus one space per every five passengers based on average daily ridership.
(e)
Off-site parking. Areas used for the temporary parking of vehicles which are fully registered, licensed and operable. Off-site parking may also include a structure for the control and regulation of the parking facility. Off-site parking facilities shall adhere to the following regulations:
(1)
A bufferyard with a minimum opacity of 0.80 shall be provided along all property borders abutting residentially zoned property.
(2)
Access and vehicular circulation shall be designed so as to discourage cut-through traffic.
(Ord. No. 090412-02, § 1, 9-4-2012)
(a)
Extraction. Land uses involving the removal of soil, clay, sand, gravel, rock, minerals, peat, or other material in excess of that required for approved on-site development or agricultural activities. Extraction land uses shall adhere to the following listed regulations:
(1)
Extraction operations shall receive approval from the county prior to action by the Village of Fontana, and shall comply with all county, state and federal regulations.
(2)
A bufferyard with a minimum opacity of 1.00 shall be provided along all borders of the property other than permanent open space.
(3)
All buildings, structures and activity areas shall be located a minimum of 300 feet from all lot lines.
(4)
Site plans shall include detailed site restoration plans, which shall include at minimum, detailed grading and re-vegetation plans, and a detailed written statement indicating the timetable for such restoration. A surety bond, in an amount equivalent to 110 percent of the costs determined to be associated with said restoration (as determined by a third party selected by the village), shall be filed with the village by the petitioner (subject to approval by the zoning administrator), and shall be held by the village for the purpose of ensuring that the site is restored to its proposed condition. (The requirement for said surety is waived for publicly-owned waste disposal facilities.)
(5)
A minimum of two parking spaces per each employee on the largest work shift shall be provided.
(b)
Composting. Land uses devoted to the collection, storage, processing, and/or disposal of vegetation. Composting land uses do not include individual residential composting systems. Composing land uses shall adhere to the following listed regulations:
(1)
Composting facilities shall comply with all county, state and federal regulations.
(2)
A bufferyard with a minimum opacity of 1.00 shall be provided along all borders of the property occupied by non-agricultural land uses.
(3)
All buildings, structures and activity areas shall be located a minimum of 100 feet from all lot lines.
(4)
No food scraps or other vermin-attracting materials shall be processed, stored or disposed of on-site.
(5)
Operations shall not involve the on-site holding, storage, or disposal of hazardous wastes as defined by state statutes in any manner.
(6)
A minimum of two parking spaces for each employee on the largest work shift shall be provided.
(c)
Recycling and waste disposal. Recycling facilities are those land uses devoted to the collection and distribution of recyclable materials. Recycling does not include the on-site storage of salvage materials. Waste disposal includes any facility and/or areas used for the disposal of solid wastes including those defined by Wis. Stats. § 289.01(33), but not including composting operations (see subsection 18-62(b), above). Recycling and waste disposal facilities shall adhere to county, state and federal regulations and adhere to the following listed regulations:
(1)
A bufferyard with a minimum opacity of 1.00 shall be provided along all borders of the property.
(2)
All buildings, structures and activity areas shall be located a minimum of 300 feet from all lot lines.
(3)
Operations shall not involve the on-site holding, storage, or disposal of hazardous materials as defined by state statutes in any manner.
(4)
Site plans shall include detailed site restoration plans, which shall include at minimum, detailed grading and revegetation plans, and a detailed written statement indicating the timetable for such restoration. A surety bond, in an amount equivalent to 110 percent of the costs determined to be associated with said restoration (as determined by a third party selected by the village), shall be filed with the village by the petitioner (subject to approval by the village administrator), and shall be held by the village for the purpose of ensuring that the site is restored to its proposed condition. (The requirement for said surety is waived for recycling and waste disposal facilities owned by public agencies.)
(5)
A minimum of two parking spaces per each employee on the largest work shift, plus four spaces for every 1,000 square feet of primary floor area shall be provided.
(d)
Salvage or junkyard. Any land or structure used for a salvaging operation including, but not limited to, the above ground, outdoor storage and/or sale of waste paper, rags, scrap metal, and any other discarded materials intended for sale or recycling; and/or the collection, dismantlement, storage, or salvage of two or more unlicensed and/or inoperable vehicles. Recycling facilities involving on-site outdoor storage of salvage materials are included in this land use. Salvage or junkyard land uses shall adhere to the following listed regulations:
(1)
A bufferyard with a minimum opacity of 1.00 shall be provided along all property borders abutting residentially zoned property.
(2)
In no instance shall activity areas be located within a required frontage landscaping or bufferyard areas.
(3)
All buildings, structures, outdoor storage areas, and any other activity areas shall be located a minimum of 50 feet from all roads and 100 feet from all lot lines.
(4)
Facility shall not involve the storage, handling, or collection of hazardous materials as defined by state statutes.
(5)
A minimum of one parking space for every 20,000 square feet of primary storage area shall be provided, plus two spaces for each employee on the largest work shift.
(Ord. No. 090412-02, § 1, 9-4-2012)
(a)
Cultivation. Operations primarily oriented to the on-site, outdoor raising of plants for commercial purposes. This land use includes the raising of trees as a crop to be replaced with more trees after harvesting, such as in nursery or Christmas tree operations. The raising of plants for consumption by farm animals is considered cultivation if said plants are consumed by animals which are located off-site. Cultivation land uses shall adhere to the following listed regulations:
(1)
On buildable lots, cultivation areas shall not exceed 20 percent of the lot's area.
(2)
Cultivation areas shall not be located within the required front yard or street yard of any buildable or developed lot.
(3)
Re-establishment or new establishment of cultivation shall be subject to the following additional requirements:
a.
Cultivation may only be re-established within the AH-35 District.
b.
Once discontinued for a period of 12 months, cultivation shall not be re-established except with the granting of a conditional use permit, and shall be limited to hay crops.
c.
The applicant shall provide a site plan that clearly depicts the area proposed for cultivation and all structures and land uses on all adjoining properties. A current air photo may be used as a base map for this site plan. All distances from the area to be cultivated to all property lines and structures on adjoining properties shall be measured and labeled on said site plan.
d.
The applicant shall provide a written plan of operation describing the proposed general timing and frequency of any and all farming activities involving mechanized equipment. The plan of operation shall list the times of operation of mechanized equipment, including earliest and latest times during the day and likely months of mechanized activity. Said plan of operation shall also list any and all chemicals to be used.
(4)
A minimum of two parking spaces per employee on the largest work shift shall be provided. (Note: Customer parking shall be provided based on land use; agricultural land uses are hereby made exempt from the surfacing requirements of section 18-213.)
(b)
Husbandry. Operations primarily oriented to the on-site raising and/or use of animals at an intensity of less than one animal unit (defined in section 18-13) per acre. This includes, but is not limited to, horses, cattle, sheep, goats, llamas (and related species), deer, antelope, swine, foul (including chickens, turkeys, ducks, geese, peacocks, guinea hens, game birds), aquatic species (including fish, shellfish, crustaceans, echinoderms, plants, and algae), and any animals typically hunted or trapped. This excludes animals typically kept as pets and commonly available at commercial pet stores (e.g., domestic dogs and cats, fish, small rodents, reptiles, amphibians, tropical/exotic birds). Apiaries are also considered husbandry land uses. Husbandry land uses shall adhere to the following listed regulations:
(1)
Any building housing animals shall be located a minimum of 300 feet from any residentially zoned property, and 100 feet from all other lot lines.
(2)
All outdoor animal containments (pastures, pens and similar areas) shall be located a minimum of ten feet from any residentially zoned property.
(3)
Husbandry uses, once discontinued for a period of 12 months, shall not be re-established or except with the granting of a conditional use permit, and shall only be permitted in the AH-35 District.
(4)
A minimum of two parking spaces per employee on the largest work shift shall be provided. (Note: Agricultural land uses are hereby made exempt from the surfacing requirements of section 18-213.)
(c)
On-site agricultural retail. On-site agricultural retail includes the sale of agricultural products grown exclusively on the site. The sale of products grown or otherwise produced off-site shall not be permitted within on-site agricultural retail operations; such activity constitutes indoor sales (see subsection 18-56(d)). Packaging and equipment used to store, display, package, or carry products for the convenience of the operation or its customers (such as egg cartons, baskets, containers, and bags) shall be produced off-site. On-site agricultural retail land uses shall adhere to the following listed regulations:
(1)
No structure or group of structures shall exceed 500 square feet in gross floor area.
(2)
No structure shall exceed 12 feet in height.
(3)
All structures shall meet all required setbacks for nonresidential land uses.
(4)
Said structure and fencing shall be located a minimum of 300 feet from any residentially zoned property.
(5)
Signage shall be limited to one on-site sign which shall not exceed 30 square feet in area.
(6)
Such land use shall be served by no more than one driveway.
(7)
The sale of products which are grown or otherwise produced on nonadjacent property under the same ownership, or on property under different ownership, shall be prohibited.
(8)
On-site agricultural retail uses, once discontinued for a period of 12 months, shall not be re-established except with the granting of a conditional use permit, and shall only be permitted in the AH-35 District.
(9)
A minimum of one parking space shall be provided for every 250 square feet of product display area. (Note: Agricultural land uses are hereby made exempt from the surfacing requirements of section 18-213.)
(d)
Selective cutting. Any operation associated with the one-time, continuing, or cumulative clearing, cutting, harvesting, or other destruction of trees (including by fire) where the extent of such activity is limited to an area (or combined areas) of less than or equal to 30 percent of the woodlands on the property (or up to 100 percent for developments approved prior to the effective date of this chapter). Selective cutting shall be limited to areas which are designated for such on recorded plats or certified survey maps. The destruction of trees in an area in excess of this amount of the woodlands on the property shall be considered clear cutting, (see subsection (e), below).
(e)
Reserved.
(f)
Intensive agriculture. Operations primarily oriented to the on-site raising and/or use of animals at an intensity equal to or exceeding one animal unit (as defined in section 18-13) per acre and/or agricultural activities requiring large investments in structures. Intensive agricultural land uses may include, but are not limited to, feed lots, hog farms, poultry operations, aquaculture, and certain other operations meeting this criterion. Intensive agricultural land uses shall adhere to the following listed regulations:
(1)
Intensive agricultural uses shall not be located in or adjacent to an existing or platted residential subdivision.
(2)
A bufferyard with a minimum opacity of 1.00 shall be provided along all sides of the subject property.
(3)
All buildings, structures, outdoor storage areas, and outdoor animal containments (pastures, pens and similar areas) shall be located a minimum of 300 feet from all residentially zoned property and 100 feet from all other lot lines.
(4)
Intensive agricultural uses shall be located in an area which is planned to remain commercially viable for agricultural land uses.
(5)
Once discontinued for a period of 12 months, intensive agriculture uses shall not be re-established except with the granting of a conditional use permit, and shall only be permitted in the AH-35 District.
(6)
A minimum of two parking spaces per employee on the largest work shift shall be provided. (Notes: Customer parking shall be provided based on land use; agricultural land uses are hereby made exempt from the surfacing requirements of section 18-213.)
(g)
Agricultural service. Operations pertaining to the sale, handling, transport, packaging, storage, or disposal of agricultural equipment, products, by-products, or materials primarily used or produced by agricultural operations. Agricultural service land uses may include, but are not limited to, agricultural implement sales, storage, or repair operations; feed and seed stores; agricultural chemical dealers and/or storage facilities; animal feed storage facilities; commercial dairies; food processing facilities; canning and other packaging facilities; and agricultural waste disposal facilities (except composting uses, see subsection 18-62(c)). Agricultural service land uses shall adhere to the following listed regulations:
(1)
Agricultural service uses shall not be located in, or adjacent to, an existing or platted residential subdivision.
(2)
All buildings, structures, outdoor storage areas, and outdoor animal containments (pastures, pens and similar areas) shall be located a minimum of 100 feet from all lot lines.
(3)
If within the AH-35 District, agricultural service uses shall be located in an area which is planned to remain commercially viable for agricultural land uses.
(4)
Once discontinued for a period of 12 months, agricultural service uses shall not be re-established except with the granting of a conditional use permit, and shall only be permitted in the AH-35 or RP Districts.
(5)
A minimum of two parking spaces per employee on the largest work shift shall be provided. (Notes: Customer parking shall be provided based on land use; agricultural land uses are hereby made exempt from the surfacing requirements of section 18-213.)
(h)
Community garden. Garden areas divided into one or more plots to be cultivated by more than one operator or member. These areas may be on public or private lands. Community gardens shall adhere to the following listed regulations:
(1)
The on-site sales of plants grown the on-site is prohibited.
(2)
All activity areas and structures shall comply with the required setbacks and height regulations for principal structures within the zoning district.
(3)
A site plan shall be submitted to the zoning administrator for approval. Said site plan shall list the property owner, established sponsoring organization and garden manager, and demonstrate consideration for and indicate locations of structures, materials storage, equipment storage, access for deliveries and pickups, water availability, shaded rest area, and availability of public parking.
(4)
The following structures are permitted in community gardens: tool sheds, shade pavilions, barns, restroom facilities with composting toilets, and planting preparation houses, benches, bike racks, raised/accessible planting beds, compost bins, picnic tables, seasonal farm stands, fences, garden art, rain barrel systems, beehives, and children's play areas.
(5)
Signs shall be limited to identification, information, and directional signs, including sponsorship information which is clearly secondary to other permitted information on any particular sign and shall not exceed a total aggregate area of 48 square feet.
(i)
Market garden. An area for cultivation divided into one or more plots to be cultivated by more than one operator or member where the on-site sales of crops grown on-site permitted. These areas may be on public or private lands. Market gardens shall adhere to the following listed regulations:
(1)
All activity areas and structures shall comply with the required setbacks and height regulations for principal structures within the zoning district.
(2)
A site plan shall be submitted to the zoning administrator for approval. Said site plan shall list the property owner, established sponsoring organization, and garden manager, and demonstrate consideration for and indicate locations of structures, materials storage, equipment storage, access for deliveries and pickups, water availability, shaded rest area, and availability of public parking.
(3)
The following structures are permitted within market gardens: tool sheds, shade pavilions, barns, restroom facilities with composting toilets, and planting preparation houses, benches, bike racks, raised/accessible planting beds, compost bins, picnic tables, seasonal farm stands, fences, garden art, rain barrel systems, beehives, and children's play areas.
(4)
Seasonal farm stands shall be removed from the premises or stored inside a building on the premises during that time of the year when the garden is not open for public use.
(5)
Signs shall be limited to identification, information and directional signs, including sponsorship information which is clearly secondary to other permitted information on any particular sign and shall not exceed a total aggregate area of 48 square feet.
(j)
Farm family business wedding barn. Farm family business wedding barn in the A-2, ETZ Agricultural Land (A-2, ETZ) District is a use which is accessory to an agricultural use consisting of a farm family business wedding barn. A farm family business may be permitted as a conditional use for farm owners if limited to existing farm residence or farm structures not dedicated to agricultural uses. No more than two persons who are not members of the resident farm family may be employed in the farm family business and that does not impair or limit the current or future agricultural use of the farm or of other protected farmland. Farm family business events shall be limited to 12 per year. Farm family business wedding barn is subject to the following conditions:
(1)
A 200-foot open buffer shall be provided on all sides from the edge of the conditional use permit area not abutting a public roadway to any neighboring properties which are zoned residential or which contain a residential dwelling unit. Event activities are not permitted within this buffer area. Where possible, agricultural crops or suitable landscaping shall remain or be grown in the buffer area, to maintain the rural/agricultural character of the site. This buffer requirement may be increased, decreased, or waived at the discretion of the plan commission.
(2)
Buffer plantings shall be provided along any edge of the conditional use permit area where there is an abutting residence within 500 feet of the conditional use permit area to screen views, lights, and noise from the operation. Plantings shall be specified in the conditional use permit.
(3)
The increase in traffic generated by the venue shall not create a public nuisance as defined in chapter 50 to nearby residents by way of traffic, noise, or significant increases in parking on public ways.
(4)
Parking may be either gravel or paved as determined by the plan commission. Overflow parking on grass or hay areas is permissible.
(5)
Parking areas shall be contained within the designated conditional use permit area. Parking provided shall be equal to one space per three guests proposed plus one space per employee on the largest shift. The village board may approve a portion of the minimum required parking to be provided on grassy or other pervious surfaces as overflow parking. Any proposed overflow parking shall be shown on the submitted site plan. Maximum guest capacity shall be provided at the time of application.
(6)
Signage and site lighting shall comply with zoning ordinances. Lighting shall be the minimum necessary to provide for site safety and comply with ordinance standards. Lighting shall be directed away from adjacent properties.
(7)
The use shall comply with the latest adopted International Building Code.
(8)
No smoking, lit candles or open flames shall be permitted within the wedding barn structure(s) or within 100 feet of the wedding barn structure(s).
(9)
The wedding barn structure shall have smoke detectors and portable fire extinguishers in the structure at all times that the wedding barn is in use.
(10)
Amplified music is permitted only within the venue as part of the conditional use permit. Outdoor amplified music may not exceed 100 db at the property line and shall end by 10:00 p.m.
(11)
In addition to existing conditional use permit applications on file with the village, the following information shall be provided at the time of application:
a.
Size of venue and guest capacity including a floor plan of the venue and other structures to be utilized, provision of restroom facilities, and location of refuse/recycling receptacles and disposal method.
b.
Signage and lighting plan.
c.
Hours of operations.
d.
Anticipated number of events per year.
e.
Anticipated music at the venue and type of sound amplification.
f.
Any other documents required by the zoning administrator.
(Ord. No. 090412-02, § 1, 9-4-2012; Ord. No. 110121-02, § 18, 11-1-2021; Ord. No. 061223-01, § 2, 6-12-2023)
(a)
Home occupation. Economic activities performed within a single-family detached residence, such as personal and professional services and handicrafts. Home occupations are intended to provide a means to accommodate a small home-based family or professional business without the necessity of a rezoning from a residential to a business district. Home occupations are limited to service-oriented businesses and businesses that do not generate customer visits. Home occupations shall adhere to the following listed regulations:
(1)
Home occupations shall adhere to the accessory land use requirements in subsection 18-52(2).
(2)
The home occupation must be clearly incidental and secondary to the principal use as a residence.
(3)
The home occupation may not constitute more than 25 percent of the floor area of the principal building.
(4)
The home occupation shall be conducted only within the enclosed area of the dwelling unit or attached garage.
(5)
Any and all employees shall be a resident of the dwelling unit.
(6)
The residential character of the building and premises shall be maintained so that with the exception of permitted signage, there is no outdoor evidence of any home occupation activities.
(7)
The applicant shall obtain the property owner's written permission to establish a home occupation.
(8)
Such use shall not include the operation of any machinery, tools, or other appliances in a manner which would create noise or other nuisance factors in excess of those typical to residential uses.
(9)
Only one sign may be used to indicate the type of occupation or business. Such sign shall not be illuminated and shall not exceed three square feet.
(10)
No storage or display of materials, goods, supplies, or equipment related to the operation of the home occupation shall be visible outside any structure located on the premises.
(11)
Home occupations shall not involve the use of commercial vehicles for more than occasional delivery of materials to or from the premises.
(12)
Automated production and/or mass manufacturing of products on the premises is prohibited. Hand-crafted and/or assembled custom products, such as jewelry, ceramics, furniture, clothing and accessories, and fishing lures are permitted.
(13)
Any off-street parking area shall be limited to that which is compatible with the residential character of the neighborhood and shall conform to the standards set forth in section 18-213.
(b)
Expanded home occupation. Expanded home occupations are intended to provide greater flexibility than home occupations in terms of number of employees, customer visits, and allowable occupations. For example, retail trade may be conducted in an expanded home occupation, whereas home occupations are limited to service-oriented businesses and businesses that do not generate customer visits. Expanded home occupations shall adhere to the following listed regulations:
(1)
Expanded home occupations shall adhere to the accessory land use requirements in subsection 18-52(2).
(2)
Expanded home occupations shall adhere to all regulations listed under subsection 18-64(a), except subsection 18-64(a)(5).
(c)
Family day care home (4—8 children). Occupied residences in which a qualified person or persons provide childcare for four to eight children. The care of less than four children is not subject to the regulations of this chapter. (Wis. Stats. § 66.1017(1)(a)). Family day care homes shall adhere to the accessory land use requirements in subsection 18-52(2).
(d)
Intermediate day care home (9—15 children). Occupied residences in which a qualified person or persons provide childcare for nine to 15 children. (Wis. Stats. § 48.65). Intermediate day care homes shall adhere to the accessory land use requirements in subsection 18-52(2).
(e)
In-home suite. The area within a dwelling unit that may contain separate kitchen, dining, bathroom, laundry, living, sleeping, and recreation areas, including exterior porches, patios and decks. In addition to the required internal physical connection, separate outdoor access or separate access to the garage may be provided. In-home suites shall adhere to the following listed regulations:
(1)
In-home suites shall adhere to the accessory land use requirements in subsection 18-52(2).
(2)
In-home suites may not be occupied by a nonfamily member.
(3)
In-home suites should be considered and regulated as part of a single-family dwelling unit.
(4)
External stairs serving as the primary access to the in-home suite are prohibited.
(5)
The principal dwelling unit and the in-home suite shall together appear as a single-family dwelling.
(6)
A separate walled garage area or driveway is not permitted.
(7)
A separate address for the in-home suite is not permitted.
(8)
A separate utility connection or meters are not permitted.
(9)
A physical all-weather connection between the main living area and the in-home suite must be present. This required connection may not occur through an attic, basement, garage, porch, or other nonliving area. A door may be used to separate the in-home suite from the principal dwelling, but may not be locking, except that a locking door may be used for the bedroom and bathroom doors of the in-home suite.
(10)
When an application is submitted for a building permit to accommodate what is explicitly listed as, or could possibly serve as, an in-home suite, the building plan shall be marked as "not a separate dwelling unit or apartment," and a signed letter from the applicant stating agreement with this condition shall be filed.
(f)
Accessory dwelling unit. A dwelling unit established in conjunction with and clearly subordinate to the principle dwelling unit. Accessory dwellings may be located on the same lot as a single-family dwelling unit, either in the same building as the single-family dwelling unit or in a detached accessory building. Accessory dwelling units may also be permitted on the ground floor of a building used for an office, commercial or institutional land use, but may not be within the first 24 feet of the ground floor measured from the front of the building. More than one dwelling unit within a mixed-use structure shall be treated as a mixed-use residential land use. Accessory dwelling units shall adhere to the following listed regulations:
(1)
Accessory dwelling units shall adhere to the accessory land use requirements in subsection 18-52(2).
(2)
Only one accessory dwelling unit shall be permitted on any one site, if permitted by the zoning district of the subject site.
(3)
Accessory dwellings shall not exceed 50 percent of the principal dwelling's floor area, up to a maximum size of 1,500 square feet, whichever is smaller in size.
(4)
The principal building must be owner-occupied.
(5)
The accessory dwelling unit shall not be sold separately from the principal dwelling or the remainder of the property.
(6)
The accessory dwelling unit may be occupied by family or nonfamily members.
(7)
Additional entrances shall not be added to the front elevation of an existing building, but may be added to side or rear or street-side elevations.
(8)
Entryways within a rear or side yard shall be connected to a street frontage by a paved walkway or driveway. On corner lots, primary entrances to accessory dwelling units shall be placed on the facade parallel to the side street.
(9)
The appearance or character of the principal building must not be significantly altered so that its appearance is no longer that of a single-family dwelling; however, a distinct address and/or distinct utility meter is permitted.
(10)
Accessory dwelling units shall not be located in a boat house or in a structure less than 75 feet from the ordinary high-water mark.
(g)
Farm residence. A single-family detached dwelling unit located on the same property as any of the principal agricultural land uses listed under section 18-63. Farm residences shall adhere to the accessory land use requirements in subsection 18-52(6).
(h)
Migrant employee housing. Any facility subject to the regulation of Wis. Stats. § 103.90(3)(a). Migrant employee housing shall adhere to the following listed regulations:
(1)
Migrant employee housing shall adhere to the accessory land use requirements in subsection 18-52(2).
(2)
A bufferyard with a minimum opacity of 0.60 shall be provided along all property lines adjacent to all properties not zoned AH-35.
(3)
Migrant employee housing shall be an accessory use to an active principal land use and under the same ownership.
(i)
Residential garage or shed. Structures primarily used to shelter parked passenger vehicles. A residential shed is a structure used primarily to store residential maintenance equipment of the subject property. Residential garages and sheds shall adhere to the following listed regulations:
(1)
Residential garages and sheds shall adhere to the accessory land use requirements in subsection 18-52(2).
(2)
The total number of structures shall be limited to one detached garage and one other like-use accessory structure, except condominium lots, where up to one shed or garage may be permitted for each dwelling unit.
(3)
The total of all detached garages and sheds shall not exceed a combined total floor area greater than 60 percent of the floor area of the principal building on the lot.
(j)
Residential recreational facility. All active outdoor recreational facilities located on a private residential lot which are not otherwise addressed in this article. Common examples include swing sets, basketball courts, tennis courts, swimming pools, and recreation-type equipment. Residential recreational facilities shall adhere to the following listed regulations:
(1)
Residential recreational facility shall adhere to the accessory land use requirements in subsection 18-52(2).
(2)
All private residential recreation facilities and their attendant structures shall comply with the bulk requirements for accessory structures.
(3)
Materials and lighting at said property line are to be equal to or less than 0.5 foot candles.
(4)
Swimming pools shall be regulated by the performance standards provided in section 18-216.
(5)
Play platforms shall not exceed a platform height of eight feet and shall be setback twice their elevation from any property line. See also subsection 18-177(b)(4).
(k)
Residential kennel or stable. A residential kennel is the housing of any combination of more than three dogs and/or cats over six months of age within a residential dwelling unit. A residential stable is an accessory structure that is designed for the keeping of equines for the private use of the occupants of the principal dwelling and their guests, but in no event for hire. Residential kennels and stables shall adhere to the following listed regulations:
(1)
Residential kennels and stables shall adhere to the accessory land use requirements in subsection 18-52(2).
(2)
Outdoor containments for animals shall be located a minimum of 25 feet from any residentially zoned property.
(3)
A minimum lot area of 175,000 square feet (approx. four acres) is required for a private residential stable.
(4)
A maximum of one horse per two acres of fully enclosed (by fencing and/or structures) area is permitted.
(5)
The minimum permitted size of horse or similar animal stall shall be 100 square feet.
(l)
On-site parking. On-site parking lots are any areas located on the same site as the principal land use which are used for the temporary parking of vehicles which are fully registered, licensed, and operable. On-site parking areas shall adhere to the following listed regulations:
(1)
On-site parking areas shall adhere to the accessory land use requirements in subsection 18-52(2).
(2)
Access and vehicular circulation shall be designed to discourage cut-through traffic.
(m)
Company cafeteria. A food service operation which provides food only to company employees and their guests. Company cafeteria shall adhere to the following listed regulations:
(1)
Company cafeterias shall adhere to the accessory land use requirements in subsection 18-52(2).
(2)
Company cafeterias shall meet state food service requirements.
(3)
Company cafeterias shall be located on the same property as a principal land use engaged in an operation other than food service.
(n)
Company on-site recreation. Any active or passive recreational facility located on the same site as a principal land use, and which is reserved solely for the use of company employees and their guests. Company on-site recreational facilities shall adhere to the following listed regulations:
(1)
Company on-site recreation areas shall adhere to the accessory land use requirements in subsection 18-52(2).
(2)
All structures and actively used outdoor areas shall be located a minimum of 50 feet from any residentially zoned property.
(3)
A bufferyard with a minimum opacity of 0.60 shall be provided for any outdoor recreation facilities using night lighting and/or adjoining a residentially zoned property.
(4)
Facilities using night lighting shall require a conditional use permit.
(o)
Incidental outdoor display. The sales and display of merchandise or equipment outside of an enclosed building and is incidental to a principal commercial or industrial land use. Incidental outdoor display land uses shall adhere to the following listed regulations:
(1)
Incidental outdoor display land uses shall adhere to the accessory land use requirements in subsection 18-52(2).
(2)
Incidental outdoor display land uses shall comply with all regulations of subsection 18-56(e).
(3)
The display area shall not exceed 25 percent of gross floor area of principal building on the site.
(p)
Incidental indoor sales. Any retail sales activity conducted exclusively indoors which is incidental to a principal land use such as warehousing, wholesaling, or any light industrial land use on the same site. Incidental indoor sales shall adhere to the following listed regulations:
(1)
Incidental indoor sales shall adhere to the accessory land use requirements in subsection 18-52(2).
(2)
The total area devoted to sales activity shall not exceed 25 percent of the total area of the buildings on the property. Areas devoted to artisan studio uses such as custom ceramics, glass, wood, paper, fabric, and similar crafts may exceed 5,000 square feet with the granting of a conditional use permit for such use.
(3)
Shall provide restroom facilities directly accessible from retail sales area.
(4)
The retail sales area shall be physically separated by a wall from all other activity areas.
(5)
Adequate parking shall be provided for customers in addition to that required for the principal land use.
(q)
Incidental light industrial. Any light industrial activity conducted exclusively indoors which is incidental to a principal land use, such as indoor sales or service, on the same site. Incidental light industrial shall adhere to the following listed regulations:
(1)
Incidental light industrial uses shall adhere to the accessory land use requirements in subsection 18-52(2).
(2)
The total area devoted to light industrial activity shall not exceed 15 percent of the total area of the buildings on the property, or 5,000 square feet, whichever is less.
(3)
The production area shall be physically separated by a wall from other activity areas and shall be soundproofed to the level required by section 18-227 for all adjacent properties.
(4)
Adequate parking shall be provided for customers in addition to that required for the principal land use.
(r)
Stormwater facilities. These include all improvements including, but not limited to, swales, ditches, culverts, drains, tiles, gutters, levees, basins, detention or retention facilities, impoundments, and dams intended to effect the direction, rate and/or volume of stormwater runoff, snow melt, and/or channelized flows across, within, and/or away from a site. Stormwater facilities shall adhere to the following listed regulations:
(1)
Stormwater facilities shall adhere to the accessory land use requirements in subsection 18-52(2).
(2)
Stormwater facilities shall adhere to applicable state regulations and regulations in the Village of Fontana Municipal Code.
(s)
Exterior communications device. This land use includes any towers and antennas, such as satellite dish and television antennas, used for communication reception including those use for reception by an amateur radio operator licensed by the Federal Communications Commission (FCC). Exterior communications devices shall adhere to the following listed regulations:
(1)
Exterior communications devices shall adhere to the accessory land use requirements in subsection 18-52(2).
(2)
Regulations specific to ham radio/shore wave antennas and towers:
a.
The regulations under this subject apply only to antennas used for communication reception by an amateur radio operator licensed by the FCC.
b.
Installations may not be located in a front or street side yard.
c.
Installations of 45 feet or less in height shall meet the setback requirements for any accessory structure.
d.
Installations with heights between 45 feet and 75 feet shall meet the setback requirements for a principal structure and will require a prior written notice to the abutting property owners.
e.
Installations of 75 feet or higher shall have a setback of at least one-third of the total height of the structure.
f.
Installations of 75 feet or higher or those that do not meet all of the requirements for installations less than 75 feet shall require a conditional use permit.
g.
With the exception of the requirements listed above, all installations of ham/short-wave antennas and towers shall comply with the performance standards of this chapter.
h.
All installations shall require the proper building permits.
(3)
Regulations pertaining to all other exterior communications devices:
a.
Except for television antennas, ham radio antennas, and satellite dishes 18 inches or smaller, exterior communication devices shall not be visible from a public street.
b.
Devices must be sited an equal or greater number of feet from any property lines as their maximum height and shall not be located in a required setback.
c.
The applicant must demonstrate that all reasonable mechanism have been used to mitigate safety hazards and visual inputs of the device.
(t)
Septic systems. Any state-enabled, county-approved septic disposal system. Septic systems shall comply with the applicable state regulations and regulations in the Village of Fontana Municipal Code related to the protection of natural resources. Septic systems shall adhere to the following listed regulations:
(1)
Septic systems shall adhere to the accessory land use requirements in subsection 18-52(2).
(2)
The minimum lot size for installation of a septic system is one-half acre (21,780 square feet).
(u)
Small solar energy system. An energy system that converts solar energy to usable thermal, mechanical, chemical, or electrical energy, where such solar energy system is accessory to the principal use of the land (e.g., solar panels providing energy for a dwelling on the same lot), and does not exceed a rated capacity of 60 kilowatts. Small solar energy systems are permitted uses in all zoning districts. Note that solar energy systems exceeding 60 kilowatts are listed under large solar energy systems. Small solar energy systems shall adhere to the following listed regulations:
(1)
Small solar energy systems shall adhere to the accessory land use requirements in subsection 18-52(2).
(2)
Rooftop, ground-mounted, and building-mounted solar energy systems shall comply with the height limits and minimum required yards for principal structures.
(3)
The requirements of Wis. Stats. §§ 66.0401 and 66.0403, shall apply to all solar energy systems.
(v)
Small wind energy system. An energy system that converts wind energy to usable thermal, mechanical, chemical, or electrical energy, where such wind energy system is accessory to the principal use of the lot (such as a wind turbine system providing energy for a dwelling on the same lot), primarily supplies energy to such principal use, and does not exceed a rated capacity of 60 kilowatts. Note that wind energy systems exceeding 60 kilowatts are listed under large wind energy systems (see subsection 18-59(g). Small wind energy systems shall adhere to the following listed regulations:
(1)
Small wind energy systems shall adhere to the accessory land use requirements in subsection 18-52(2).
(2)
Small wind energy systems shall meet all detached accessory building setbacks in the applicable zoning district. Except by conditional use permit, no small wind energy system shall be located in any front yard or side yard having frontage on a public street and shall be set back from the nearest property line, public road right-of-way, nearest inhabited building other than the principal inhabitable structure served by the small wind energy system and any public communication and electrical line by a distance of not less than 1.1 times the total height of the small wind energy system.
(3)
No small wind energy system shall be sited or operated in a manner that causes permanent or material interference with television or other communication signals.
(4)
The total height of all rooftop, ground-mounted, and building-mounted small wind energy systems located on lots up to two acres in area shall not exceed 80 feet. For small wind energy systems located on lots over two acres in area, the total height shall not exceed 170 feet. The minimum height of the lowest extent of a turbine blade shall be 30 feet above the ground or 30 feet above the maximum allowable height of any structure or obstacle within 100 feet of the small wind energy system, whichever is greater.
(5)
Sound emanating from a small wind energy system shall not exceed 75 dBA as measured at the property line, or 50 dBA as measured at the nearest neighboring dwelling, not including the principal building(s) served by the small wind energy system.
(6)
Small wind energy system structures shall be finished in a rust-resistant, non-obtrusive finish and color that is nonreflective. The freestanding small wind energy system shall be designed without use of guy wires. All electrical connections shall be located underground or within a building. No small wind or system shall be lighted unless required by the Federal Aviation Administration. Clearing of natural vegetation for the purposes of installing a small wind system shall be limited to that which is necessary for the construction, operation and maintenance of the small wind energy system and as otherwise prescribed by applicable laws, regulations and ordinances. No signs of any kind or nature whatsoever shall be permitted on any small wind energy system, except that the manufacturer's identification and appropriate warning signs are allowed.
(7)
All access doors or access ways to any required towers and electrical equipment shall be lockable. Every small wind energy system shall be equipped with both manual and automatic overspeed controls.
(8)
A small wind energy system shall require a building permit before installation, which may be included with the general building permit for the principal structure. Building permit applications shall include the following information in addition to that required by the building code:
a.
A site plan drawn to scale showing the location of the proposed small wind energy system and the locations of all existing buildings, structures, public rights-of-way, and property lines. All distances shall be measured and labeled on the site plan.
b.
Elevations of the site drawn to scale showing the height, design, and configuration of the small solar or wind energy system and the heights of all existing structures, buildings and electrical lines in relation to property lines and their distance from the small wind or solar energy system.
c.
Standard drawings and an engineering analysis of any wind energy system tower, including load-bearing and wind-bearing capacity.
d.
A standard foundation design along with specifications for the soil conditions at the site.
e.
Specific information on the type, size, rotor material, rated power output, performance, safety, and noise characteristics of the system including the name and address of the manufacturer, model and serial number.
f.
A description of emergency and normal shutdown procedures.
g.
A line drawing of the electrical components of the system in sufficient detail to establish that the installation conforms to all applicable electrical codes and this subsection.
h.
Evidence that the provider of electrical service to the property has been notified of the intent to install an interconnected electricity generator, except in cases where the system will not be connected to the electricity grid.
i.
A sound level analysis prepared by the wind turbine manufacturer or other qualified engineer.
j.
Evidence of compliance with or non-applicability with Federal Aviation Administration requirements.
(w)
Incidental recreational equipment storage. This accessory land use includes the outdoor storage of recreational vehicles or equipment, including boats, boats with trailers, motorhomes, pop-up campers, fifth-wheel trailers, large utility trailers, race cars, canoes and kayaks. Incidental recreational equipment storage uses shall adhere to the following listed regulations:
(1)
Incidental recreational equipment storage shall adhere to the accessory land use requirements in subsection 18-52(2).
(2)
No more than two recreational vehicles may be stored outside of a fully enclosed structure.
(3)
No recreational vehicle may be parked or stored in a front or side yard on a regular basis, except upon nonrequired parking spaces on a pad or expanded driveway.
(4)
A recreational vehicle shall be located not closer than five feet to a side or rear lot line, except with the granting of a conditional use permit.
(5)
The recreational vehicle shall be maintained and in good condition and safe for effective performance for the function in which it was intended. The exterior of the vehicle shall be intact.
(6)
Recreational vehicles shall be roadworthy. Vehicles that require a license shall be properly licensed.
(7)
No recreational vehicle shall be parked or stored in any open space outside of a building unless such equipment is wholly owned by the property owner, who shall be in residence at the property in question. If the property is rented, such storage shall be permitted to the tenant only provided that such equipment is owned by the tenant.
(8)
All equipment shall be parked, stored or screened by fencing and/or vegetation as inconspicuously as possible on the property. The area around the equipment or vehicle must be kept weed and dust-free and free of accumulation of other storage material.
(x)
Tourist rooming house.
(1)
Description: Includes all lodging places and tourist cabins and cottages, other than hotels and motels, in which sleeping accommodations are offered for pay to tourists and transients. It does not include private boarding houses or rooming houses not accommodating tourists or transients, or bed and breakfast establishments regulated under ACTP 73.
(2)
Permitted by right: All zoning districts.
a.
Land use requirement: Tourist rooming house shall only be located as an accessory land use within a residential land use as defined in section 18-55.
b.
Annual village license required: Each tourist rooming house shall operate only during the valid period of an annual Village of Fontana tourist rooming house license for each calendar year. Operating a tourist rooming house without a current version of a valid license shall be considered a violation of this zoning ordinance, and subject to the penalties of section 18-257. The following information shall be provided on an annual basis, prior to issuance of said annual Village of Fontana tourist rooming house license:
1.
Completed Village of Fontana tTourist rooming house application, which includes the property owner name, address, and phone number; the designated operator's name, address, and phone number; the period of operation of up to 180 days in a calendar year, which must be consecutive;
2.
A current floor plan for the tourist rooming house at a minimum scale of one-inch equals four feet, and site plan of the property at a minimum scale of one-inch equals ten feet showing on-site parking spaces and trash storage areas;
3.
General building code inspection by village, and submittal of official building code inspection report with no outstanding compliance orders remaining;
4.
Fire code inspection by village, and submittal of official fire code inspection report with no outstanding compliance orders remaining;
5.
Proof of valid property and liability insurance for the dwelling unit;
6.
State of Wisconsin tourist rental house license;
7.
Seller's permit issued by the Wisconsin Department of Revenue;
8.
Village of Fontana room tax permit; and
9.
Payment of an administrative fee, set annually by the village board, to cover the costs to the village for administering the above.
The Village of Fontana tourist rooming house license shall be issued with the completion of the above requirements.
c.
Property management requirements: Each tourist rooming house shall be managed consistent with the following requirements:
1.
The total number of days of operation within any calendar year shall not exceed 180 days, which must be consecutive. This period of tourist rooming house operation shall be specified by the property owner in the required annual Fontana tourist rooming house application.
2.
The minimum rental period shall be a minimum of seven consecutive days by any one party.
3.
The maximum rental period shall be no more than 180 consecutive days by any one party.
4.
Similar facilities in which residential land uses are available for more than 180 days, or throughout the year, are a different land use that falls within the indoor commercial lodging land use category.
5.
The maximum number of occupants shall not exceed the total number licensed by the State of Wisconsin or two per bedroom plus two additional occupants, whichever is less.
6.
The tourist rooming house shall be operated by the property owner or by a property manager explicitly designated in the valid Fontana tourist rooming house application as the "designated operator".
7.
The property owner's and the designated operator's names, addresses, and 24-hour phone numbers shall be provided in the Village of Fontana tourist rooming house application and shall be updated within 24 hours upon any change in the property manager or the property manager contact information.
8.
The designated operator must reside within, or have their business located within, 25 miles of the tourist rooming house parcel.
9.
The designated operator must be available by phone 24 hours, seven days a week, during the period of operation designated in the Fontana tourist rooming house application.
10.
Each tourist rooming house shall provide and maintain a guest register and shall require all guests to register their true names and addresses before allowing occupancy. The guest register shall be kept intact and available by the designated operator for inspection by representatives of the village for at least one year from the day of the conclusion of the period of operation.
11.
Each tourist rooming house shall maintain the following written business record for each rental of the tourist rooming house: the true names and addresses of any person renting the property, the dates of the rental period (which must be a minimum of seven consecutive days), and the monetary amount or consideration paid for the rental. The business record shall be kept intact and available by the designated operator for inspection by representatives of the village for at least one year from the day of the conclusion of the period of operation.
d.
Property operational requirements: Each tourist rooming house shall be operated per the following requirements:
1.
The "requirements for tourist rooming house guests" form provided by the Village of Fontana to summarize village requirements for tourist rooming houses, and the site plan for the subject property clearly depicting guest parking spaces and the rear yard, shall be posted on the inside of the front door of each tourist rooming house throughout its period of operation.
2.
Parking requirements:
(i)
A minimum of two off-street parking spaces shall be provided on the subject property for each tourist rooming house. If the tourist rooming house provides three or more bedrooms, an additional on-site parking space is required for each additional bedroom over two.
(ii)
All guest parking for vehicles and trailers shall be within a parking space designated on the site plan, on an area paved with concrete or asphalt.
(iii)
All guest vehicles and trailers may only park on-site. Street parking for guests is not permitted.
(iv)
No parking is permitted on gravel, lawn, or planter bed areas.
3.
Site appearance requirements:
(i)
Aside from a changing mix of guests and their vehicles, there shall be no evidence of the property being used as a tourist rooming house visible on the exterior of the subject property.
(ii)
No exterior signage related to the tourist rooming house is permitted, other than the property address.
(iii)
No outdoor storage related to the tourist rooming house land use is permitted, except for typical residential recreational equipment, seating, and outdoor cooking facilities which are permitted only within the rear yard.
(iv)
No recreational vehicle, camper, tent, or other temporary lodging arrangement shall be permitted to accommodate guests.
4.
Neighborhood impact requirements:
(i)
No outdoor activity shall occur between the hours of 10:00 p.m. and 7:00 a.m.
(ii)
At all times, no noise, lighting, odor or other impacts from the subject property shall be detectable at the property line at levels exceeding the requirements of article 13 of the Fontana Zoning Ordinance.
(iii)
No vehicular traffic shall be generated by the tourist rooming house at levels exceeding those typical for a detached single-family dwelling unit.
5.
Tourist rooming house advertising:
(i)
No outdoor advertising is allowed on the subject property.
(ii)
The tourist rooming house shall not be advertised for availability in any form of media unless the required Village of Fontana tourist rooming house license has been issued.
e.
Penalties and license revocation.
1.
Violations of the requirements for tourist rooming houses, the provisions of the tourist rooming house license, and all other the requirements of the zoning ordinance are subject to separate daily fines per section 18-257. Violations will be issued to, and will be the responsibility of, the property owner.
2.
The annual tourist rooming house license may be revoked for more than two violations of the requirements of the license, the requirements specific to tourist rooming houses, the license, or the remainder of zoning code.
(Ord. No. 090412-02, § 1, 9-4-2012; Ord. No. 061118-02, § 3, 6-11-2018; Ord. No. 040419-01, § III, 4-4-2019)
(a)
Temporary farm product sales. The temporary outdoor display and sales of farm products, typically from a roadside stand. Temporary farm product sales shall adhere to the following listed regulations:
(1)
Shall comply with section 18-248, standards and procedures applicable to all temporary uses.
(2)
Display shall not obstruct pedestrian or vehicular circulation, including vehicular sight distances.
(3)
If subject property is located adjacent to a residential area, sales and display activities shall be limited to daylight hours.
(4)
Adequate parking shall be provided.
(b)
Temporary outdoor sales. The display of any items outside the confines of a building which is not otherwise permitted as a permitted or conditional use, or, a special event otherwise regulated by the Municipal Code. Examples of this land use include, but are not limited to, sidewalk sales, seasonal garden shops, tent sales, Christmas tree sales, and more than three garage sales per year. Temporary outdoor sales shall adhere to the following listed regulations:
(1)
Shall comply with section 18-248, standards and procedures applicable to all temporary uses.
(2)
The user shall provide a layout of the activities to the zoning administrator for approval prior to any event or sales activity.
(c)
Temporary outdoor assembly. Any organized outdoor assembly of more than 100 persons. Examples include, but are not limited to, an outdoor wedding or tent meetings. Temporary outdoor assembly shall adhere to the following regulations:
(1)
Shall comply with section 18-248, standards and procedures applicable to all temporary uses.
(2)
Activities shall not obstruct pedestrian or vehicular circulation, including vehicular sight distances.
(3)
If subject property is located adjacent to a residential area, activities shall be limited to daylight hours.
(4)
Adequate provisions for crowd control shall be made, and shall be described within the temporary use application.
(5)
Adequate parking, drinking water, and toilet facilities shall be provided, and shall be described in the temporary use application.
(d)
Temporary storage container. These containers are portable storage containers designed and used primarily for the temporary storage of household goods and other such materials for use on a limited basis on residential property. Temporary storage containers shall adhere to the following listed regulations:
(1)
Shall comply with section 18-248, standards and procedures applicable to all temporary uses.
(2)
The container shall not exceed outside dimensions of sixteen 16 feet in length, eight feet in width, and nine feet in height.
(3)
The container shall be permitted on the property for up to 14 days associated with each change of occupancy as defined by a recorded change in property ownership or valid lease.
(4)
The container cannot encroach on the public right-of-way, neighboring property, sidewalk, or be placed in the street.
(5)
The container must be placed on asphalt, concrete, gravel, or other hard-paved surface.
(6)
For all multifamily uses, including multiplex, apartments, and townhouses, use of temporary portable storage containers shall require review and approval by the zoning administrator. The applicant shall provide written permission from the land owner to place the temporary portable storage container on the property in accordance with the regulations listed in this section.
(e)
Temporary construction storage. Any structure or outdoor storage area designed for the on-site storage of construction equipment and/or materials for an active construction project. Temporary construction storage shall adhere to the following listed regulations:
(1)
The structure shall comply with section 18-248, standards and procedures applicable to all temporary uses.
(2)
The structure shall be removed within ten days of issuance of occupancy permit.
(3)
Projects requiring the structure to be in place for more than 365 days shall require a conditional use permit. Said time limit may be extended with village board approval.
(4)
The structure shall be limited to a maximum area not exceeding ten percent of the property's gross site area.
(f)
Temporary relocatable building. Any manufactured building which serves as a temporary building for less than six months. Temporary relocatable buildings shall adhere to the following listed regulations:
(1)
The structure shall comply with section 18-248, standards and procedures applicable to all temporary uses.
(2)
Facilities serving for more than six months shall be considered conditional uses and are subject to the general standards and procedures presented in section 18-246.
(3)
The unit must be placed on asphalt, concrete, gravel, or other hard-paved surface.
(4)
The structure shall be limited to a maximum area not exceeding ten percent of the property's gross site area.
(g)
Garage or estate sale (auction). The sale or offering for sale of miscellaneous used items commonly associated with residential use. Temporary garage or estate sales shall adhere to the following listed regulations:
(1)
Permits are not required for garage or estate sales.
(2)
Sales shall be limited to a maximum of three per calendar year; each sale shall be limited to a period of no more than three consecutive days.
(3)
Sales shall occur only during daylight hours.
(h)
Farmer's market. The temporary or occasional outdoor retail sales of farm produce, plants and flowers, bakery goods, and/or crafts from vehicles or temporary stands located within a parking lot or public right-of-way. Farmer's markets shall adhere to the following listed regulations:
(1)
Facility shall have vehicular access to a collector or higher classification street.
(2)
A minimum of one parking space shall be provided per vendor, plus adequate parking to accommodate customer traffic.
(i)
Limited duration special activities and events. Any use of a structure or land for an indoor and/or outdoor event for a limited period of time not otherwise addressed in subsections 18-65(a)—(h), above, where the site is not to be permanently altered by grading or construction. Events include, but are not limited to, art shows, outdoor festivals and concerts, antique boat show, hot air balloon launch, or benefit event. Limited duration special activities and events shall adhere to the following listed regulations:
(1)
Duration.
a.
Temporary activities or events shall be limited to a period of no more than two consecutive days in the AH-35, LR-0, SR-1, SR-2, SR-4, SR-5, AR-6, MR-8, MR-12, NB, OP, RP Districts and the Abbey Villas and Abbey Ridge Subdistricts. A temporary use permit is not required for these events or activities.
b.
Temporary activities or events shall be limited to a period of no more than 45 consecutive days in the IN, VC, CB Districts and the Abbey Resort and Abbey Harbor Marina Subdistricts of the RB District. A temporary use permit is not required for these events or activities.
c.
Temporary activities or events of a duration exceeding 45 consecutive days shall secure a temporary use permit per section 18-248.
(2)
Activities shall not obstruct pedestrian or vehicular circulation, including vehicular sight distances.
(3)
If subject activity area is located within 100 feet of a property with residential zoning, activities shall be limited to daylight hours except as enabled through the granting of a conditional use permit. (Note: The Abbey Villas and Abbey Ridge Subdistricts of the RB District are categorized as nonresidential zoning.)
(4)
Adequate provisions for crowd control shall be made, and shall be described within the temporary use application.
(5)
Adequate parking, drinking water and toilet facilities shall be provided, and shall be described in the temporary use application.
(j)
Placement of one or more temporary outdoor storage rack(s) for non-motorized watercraft on property owned in common as part of a subdivision or condominium association, subject to the following limits and requirements:
(1)
No more than six months of said placement and use in a calendar year: and
(2)
Storage capacity for each storage rack limited to not more than 20 non-motorized watercraft and not more than eight-foot in height; and
(3)
Use limited to non-motorized watercraft owned by residents of the subdivision or condominium association, with rack storage not available for rent or third-party use; and
(4)
The placement of said rack(s) shall comply with all zoning setbacks for the zoning district in which located; provided, however, that for a riparian association property, the shoreyard setback may be reduced to 25 feet for only one rack.
(k)
Food and beverage vehicles, carts, and stands. Food and beverage vehicles, carts, and stands are wheeled vehicles or transported structures or equipment with personnel that serve ready-to-consume food and/or beverage products to guests at private events or as an extension of catered services or as an alternative to catered services. Such products are cooked, prepared, and/or served for individual or shared portion service from these facilities. Common examples of this land use include food trucks, food trailers, food carts, grill trailers, canteen trucks, ice cream trucks, coffee trucks, donut trucks, smoothie trucks, mobile food kitchens, pushcart vendors, bicycle vendors, and similar vehicles, structures, or equipment. Food and beverage vehicles, carts, and stands shall adhere to the of following listed regulations:
(1)
No temporary use permit is required.
(2)
Shall require the property owner's written permission.
(3)
Shall limit service to only private events as an extension of catered services or as an alternative to catered services.
(4)
No freestanding signage is permitted in association with the use. On-vehicle or on-equipment signage is permitted, with a maximum sign area of 20 square feet.
(5)
Shall be located entirely within a parcel boundary with a minimum ten-foot setback to any lot line and any right-of-way line and shall not be located within a public right-of-way or access easement.
(6)
Shall be located within an area paved for vehicle parking such as a driveway or parking pad, or within one or more designated parking spaces within a parking lot. Shall not be located within a driving aisle or lane.
(7)
Shall maintain all required health inspection certificates and applicable licenses.
(8)
Shall comply with all village noise limitations in section 18-227.
(9)
Shall comply with all village lighting requirements in section 18-165.
(10)
Shall be fully removed daily at the close of business hours, and which at maximum shall be 7:00 a.m. to 9:00 p.m.
(l)
Temporary parking. An area of temporary or seasonal parking, defined as occurring for a consecutive period of no more than 150 days per calendar year. Temporary parking shall adhere to the following listed regulations:
(1)
The parking area shall have a maximum of ten parking spaces of standard nine-foot x 18-foot dimensions.
(2)
A temporary parking area is not required to be paved.
(Ord. No. 090412-02, § 1, 9-4-2012; Ord. No. 110121-01, § 1, 11-1-2021; Ord. No. 120621-04, §§ 1, 2, 12-6-2021; Ord. No. 100923-01, § 1, 10-9-2023; Ord. No. 032524-01, 3-25-2024)
LAND USE REGULATIONS
The purpose of this article is to indicate which land uses may locate in each standard zoning district and under what requirements; and which land uses may not locate therein. Certain land uses may locate in a given district as a matter of right upon compliance with special regulations for such a land use. A further distinction is made for land uses which may locate in a given district only upon obtaining a conditional use permit or a temporary use permit.
(Ord. No. 090412-02, § 1, 9-4-2012)
The land uses permitted within each zoning district are established in article II of this chapter. Detailed descriptions and regulations for uses are found in sections 18-55 through 18-65. Even if a land use may be indicated as permitted by right or requiring a conditional use in a particular district, such a land use may not necessarily be permitted or permissible on any or every property in such district. No land use is permitted or permissible on a property unless it can be located on it or implemented in full compliance with all of the applicable standards and regulations of this chapter or unless an appropriate variance has been granted pursuant to section 18-253.
(1)
Principal land uses permitted by right. Principal land uses listed as permitted by right are permitted per the general land use requirements of this article; per the density, intensity and bulk regulations of the specific zoning district in which they are located; per any additional requirements imposed by applicable overlay districts; per all other applicable requirements of this chapter; and per any and all other applicable village, county, state and federal regulations.
(2)
Principal land uses permitted as conditional uses. Principal land uses allowed only with a conditional use permit may be permitted subject to all the requirements applicable to uses permitted by right as listed in subsection (1), above, plus any additional requirements applicable to that particular land use imposed as part of the conditional use permit process established in section 18-246. Each application for, and instance of, a conditional use shall be considered a unique situation and shall not be construed as precedence for similar requests.
(3)
Accessory land uses. Accessory land uses are allowed subject to all the requirements and exemptions applicable to principal land uses permitted by right as listed in subsection (1), above. Accessory land uses allowed only with a conditional use permit are subject to all the requirements and exemptions applicable to principal land uses requiring a conditional use permit as listed in subsection (2), above.
(4)
Temporary land uses. Temporary land uses are allowed on a temporary basis subject to permitting requirements in section 18-248 of this chapter, unless otherwise specified in this article.
(5)
Nonconforming land uses. Land uses which are not listed in a specific zoning district in article II are not permitted in such zoning district, except as legal nonconforming uses (section 18-91).
(Ord. No. 090412-02, § 1, 9-4-2012)
All uses of land initiated within the jurisdiction of this chapter on, or following, the effective date of this chapter shall comply with all of the provisions of this chapter.
(1)
Land use regulations.
a.
All uses of land shall comply with all the regulations and requirements of this chapter, pertaining to the types of uses allowed within particular zoning districts. Such regulations and requirements address both general and specific regulations which land uses shall adhere to, and which are directly related to the protection of the health, safety and general welfare of the residents of the Village of Fontana.
b.
Off-street parking requirements specific to each land use pertain to passenger and delivery vehicles.
(2)
Accessory uses and structures. Accessory uses and structures shall comply with the regulations and requirements of this chapter as well as the following listed regulations:
a.
No accessory structure or use shall be constructed on any lot prior to the establishment of an allowable principal use, unless otherwise stated in this chapter.
b.
Accessory structures are permitted in the rear and side yards of all lots, and in the street yards of waterfront lots, flag lots, through lots, corner lots, and lots of one acre or more in size. When located in the side yard and the street yard, they shall not be closer than the minimum required side yard, rear yard and street yard setbacks. Only boathouses, boat hoists, and piers shall be permitted in the shoreyard.
c.
With the exception of an in-home suite (see subsection 18-64(e), or accessory dwelling units (see subsection 18-64(f)), in no instance shall an accessory structure, cellar, basement, tent, or recreational trailer be used as a residence.
d.
In all zoning districts the requirement that accessory structures comply with principle structure setback requirements for accessory structures 600 square feet or more in size shall not apply to properties abutting along the relevant and affected sideyard for at least 100 feet on either the Institutional (IN) District or any property in any zoning district which is otherwise restricted against development by private or public covenant or nonconforming status so as to render such property unbuildable.
(3)
Density, intensity and bulk regulations. All land use and/or development of land shall comply with all applicable regulations of articles IV and V of this chapter pertaining to the maximum permitted density, intensity and bulk regulations.
(4)
Nonconforming lots, uses, structures and site requirements. Land uses not in conformance with the requirements of the applicable zoning district shall be subject to the special limitations and exceptions as established in article VI. Land uses located on substandard lots or on nonconforming lots or in nonconforming structures shall comply with all the regulations and requirements of article VI.
(5)
Overlay zoning district regulations. All land use and/or development of land shall comply with all the applicable regulations of this chapter as established under any applicable overlay zoning districts in article VII of this chapter.
(6)
Design standards. All new, remodeled, and expanded residential and nonresidential development shall comply with design standards as required in article X of this chapter.
(7)
Landscaping regulations. All new, remodeled, and expanded development of land shall comply with all the regulations and requirements of article XI of this chapter.
(8)
Signage regulations. All land use and/or development of land shall comply with all requirements of article XII, pertaining to the type and amount of signage permitted on property.
(9)
Performance standards. All land use and/or development of land shall comply with applicable requirements established in article XIII of this chapter, pertaining to the provision of appropriate access, parking, loading, storage, swimming pools, antennas, communications towers, as well as defining acceptable levels of potential nuisances such as noise, vibration, odors, heat, glare and smoke.
(10)
Number of buildings per lot. In the AH-35, LR-0, SR-1, SR-2, SR-4, SR-5, NB Districts, only one principal building shall be permitted on any one lot. In all other districts more than one principal building may be permitted on any one lot upon granting of a conditional use permit for group or large development or as may be approved as part of a planned development per section 18-247 and section 18-43 so long as the planned development is under common ownership and at a residential density of not less than one acre per dwelling unit.
(11)
Number of principal land uses per building. No more than one nonresidential land use shall be permitted in any building unless a conditional use permit for a group development or large development is obtained. With the exception of "accessory dwelling units," "home occupation," "expanded home occupation," and "in-home suite" uses, no building containing a nonresidential land use shall contain a residential land use.
(12)
Group and large development requirements. All uses and/or development of land within a group or large development shall comply with the requirements of section 18-167.
(13)
Planned development requirements. All uses and/or development of land within a planned development shall comply with all requirements of section 18-247.
(14)
Procedural regulations and requirements. All land use and/or development of land shall comply with all requirements of article XV pertaining to the procedures necessary to secure review and approval of land use and/or development. Such regulations and restrictions address both procedural and technical requirements.
(15)
Site plan review required. All uses are subject to site plan review and approval in accordance with section 18-245 of this chapter, except for the following:
a.
Single-family and two-family residential uses on individual lots in any zoning district.
b.
Agricultural land uses which are permitted by right in any agriculture zoning district.
c.
Uses within a precise implementation plan in a planned development in accordance with the procedures of section 18-247, provided that the precise implementation plan provides a similar level of detail and range of plans as a typical site plan submittal required under this chapter.
(Ord. No. 090412-02, § 1, 9-4-2012; Ord. No. 03-02-15-01, § 1, 3-2-2015; Ord. No. 061223-02, § 3, 6-12-2023)
The land use categories employed by this chapter are defined in sections 18-55 through 18-65. Land use categories which are not listed in this chapter are not necessarily excluded from locating within any given zoning district. Section 18-231 empowers the zoning administrator to make interpretations on matters regarding specific land use proposals which are not addressed by this chapter.
(Ord. No. 090412-02, § 1, 9-4-2012)
The Table of Land Uses on the following pages is provided as a convenience for the zoning administrator and the general public. Where there are conflicts between the text of this chapter and the Table of Land Uses, the text shall prevail. Refer to section 18-167 for additional standards pertaining to group and large developments which are regulated as conditional uses.
(Ord. No. 090412-02, § 1, 9-4-2012; Ord. No. 061118-02, § 39, 6-11-2018; Ord. No. 030519-01, § 4, 3-5-2019; Ord. No. 040419-01, § III, 4-4-2019; Ord. No. 110121-02, § 19, 11-1-2021; Ord. No. 020623-02, § 17, 2-7-2023; Ord. No. 050123-02, § 32, 5-1-2023; Ord. No. 100923-01, § 3, 10-9-2023)
(a)
Single-family: A fully detached single-family residence located on an individual lot having no roof, wall or floor in common with any other dwelling unit. Single-family land uses shall adhere to the following listed regulations:
(1)
The dwelling unit must be a site-built structure built in compliance with the Uniform Dwelling Code (UDC), or may be a manufactured dwelling as permitted by the UDC, or a manufactured home that has received a federal manufactured housing certificate label.
(2)
The dwelling must be attached to a finished, permanent foundation, such as a poured concrete slab or basement meeting UDC requirements.
(3)
This dwelling unit type may not be split into two or more residences, except for permitted accessory dwellings meeting the requirements of this chapter.
(4)
The dwelling unit roof shall have a pitch of at least three feet in rise for every 12 feet in run, except by conditional use permit.
(5)
A minimum of two parking spaces shall be provided.
(6)
This following figure is intended to provide a sample graphic representation of setback and dimensional requirements for single-family land uses. Specific requirements are listed in article II under the density, intensity and bulk requirements for each zoning district.
(b)
Two-flat: A single structure with two separate residences, each with a private individual access and no shared internal access. Two-flats are attached units within a two-story structure with one unit above the other. Two-flats shall adhere to the following listed regulations:
(1)
This dwelling unit type may not be split into additional residences.
(2)
Individual sanitary sewer and public water laterals and utility meters are required for each dwelling unit.
(3)
A minimum of two parking spaces per dwelling unit shall be provided.
(4)
This following figure is intended to provide a sample graphic representation of setback and dimensional requirements for two-flat land uses. Specific requirements are listed in article II under the density, intensity and bulk requirements for each zoning district.
(c)
Twin-house: This dwelling unit type consists of two separate residences, each having a private individual access, and no shared internal access. Similar to duplexes, twin-houses are attached side-by-side units, each with a ground floor and roof. Unlike duplexes, twin-houses are located on a shared, single lot. Twin-houses shall adhere to the following listed regulations:
(1)
A Uniform Dwelling Code required fire-rated wall must separate the two dwelling units from the lowest level to flush against the underside of the roof.
(2)
This dwelling unit type may not be split into additional residences.
(3)
Individual sanitary sewer and public water laterals and utility meters are required for each dwelling unit.
(4)
A minimum of two parking spaces per dwelling unit shall be provided.
(5)
This following figure is intended to provide a sample graphic representation of setback and dimensional requirements for twin-house land uses. Specific requirements are listed in article II under the density, intensity and bulk requirements for each zoning district.
(d)
Duplex: This dwelling unit type consists of two separate residences, each having a private individual access, and no shared internal access. Duplexes are attached side-by-side units, each with a ground floor and roof. Unlike twin-homes, duplex dwelling units are located on individual lots. Duplexes shall adhere to the following listed regulations:
(1)
A Wisconsin Commercial Code required fire-rated wall must separate the two dwelling units from the lowest level to flush against the underside of the roof.
(2)
This dwelling unit type may not be split into additional residences.
(3)
Individual sanitary sewer and public water laterals and utility meters are required for each dwelling unit.
(4)
A minimum of two parking spaces per dwelling unit shall be provided.
(5)
This following figure is intended to provide a sample graphic representation of setback and dimensional requirements for duplex land uses. Specific requirements are listed in article II under the density, intensity and bulk requirements for each zoning district.
(e)
Townhouse: Attached, two-story residences, each having a private, individual access. This dwelling unit type may be located on its own lot or within a group development. Each dwelling unit shares at least one common wall with an adjacent dwelling unit. Townhouses shall adhere to the following listed regulations:
(1)
A Wisconsin Commercial Code required fire-rated wall must separate the two dwelling units from the lowest level to flush against the underside of the roof.
(2)
This dwelling unit type may not be split into additional residences.
(3)
Individual sanitary sewer and public water laterals and utility meters are required for each dwelling unit.
(4)
No more than six and no less than three townhouse dwelling units may be attached per group.
(5)
All townhouse units within a development shall be located a minimum of 30 feet from the boundary of the development.
(6)
A minimum of two parking spaces per dwelling unit shall be provided.
(7)
This following figure is intended to provide a sample graphic representation of setback and dimensional requirements for townhouse land uses. Specific requirements are listed in article II under the density, intensity and bulk requirements for each zoning district.
(f)
Multiplex: This dwelling unit type consists with three or more individual attached dwelling units which have private, individual exterior entrances. Multiplexes shall adhere to the following listed regulations:
(1)
A Wisconsin Commercial Code required fire-rated wall separating living areas from the lowest level through the roof is required between each dwelling unit.
(2)
This dwelling unit type may not be split into additional residences.
(3)
Individual sanitary sewer and public water laterals and utility meters are required for each dwelling unit.
(4)
No more than eight and no less than three multiplex dwelling units may be attached per group.
(5)
All multiplex units within a development shall be located a minimum of 30 feet from the boundary of the development.
(6)
A minimum of 1½ parking spaces per dwelling unit shall be provided.
(7)
This following figure is intended to provide a sample graphic representation of setback and dimensional requirements for multiplex land uses. Specific requirements are listed in article II under the density, intensity and bulk requirements for each zoning district.
(g)
Apartment: A single structure with three or more individual attached dwelling units which take access from a shared entrance or hallway. Apartments shall adhere to the following listed regulations:
(1)
A Uniform Dwelling Code required fire-rated wall separating living areas from the lowest level to the underside of the roof is required between each dwelling unit.
(2)
This dwelling unit type may not be split into additional residences.
(3)
Individual sanitary sewer and public water laterals and utility meters are required for each dwelling unit.
(4)
No more than eight and no less than three apartment dwelling units may be attached per group.
(5)
All apartment units within a development shall be located a minimum of 30 feet from the boundary of the development.
(6)
As part of the conditional use requirement for group developments, any development comprised of one or more buildings which contain four or more dwelling units shall provide additional site design features such as underground parking, architectural elements, landscaping, and/or on-site recreational facilities.
(7)
A minimum of 1½ parking spaces per dwelling unit shall be provided.
(8)
This following figure is intended to provide a sample graphic representation of setback and dimensional requirements for apartment land uses. Specific requirements are listed in article II under the density, intensity and bulk requirements for each zoning district.
(h)
Mobile home: A fully detached, single-family residence, which has not received a federal manufactured housing certificate. Mobile homes shall adhere to the following listed regulations:
(1)
No mobile home may be split into two or more residences.
(2)
Each mobile home site shall be serviced with public sewer, water and electric service connections and shall be placed on a permanent slab or solid foundation with appropriate skirting on all sides.
(3)
A minimum of one parking space shall be provided by mobile home.
(4)
This following figure is intended to provide a sample graphic representation of setback and dimensional requirements for mobile home land uses. Specific requirements are listed in article II under the density, intensity and bulk requirements for each zoning district.
(i)
Mobile home subdivision: This land use is a form of residential development which is exclusively reserved for individually sold lots containing mobile home units. Mobile home subdivisions shall adhere to the following listed regulations:
(1)
Each lot and mobile home unit must meet the requirements for mobile homes listed in subsection (h), above.
(2)
Development shall be located so as to blend with adjacent residentially zoned areas to the greatest extent possible.
(3)
All electric, telephone or cable television service within a mobile home park shall be underground.
(j)
Mobile home park: This land use is a form of residential development which is exclusively reserved for individually sold or rented air right pads containing mobile home units. Mobile home parks shall adhere to the following listed regulations:
(1)
Each air pad and mobile home unit must meet the requirements for mobile homes listed in subsection (h), above.
(2)
Development shall be located so as to blend with adjacent residentially zoned areas to the greatest extent possible.
(3)
All electric, telephone or cable television service within a mobile home park shall be underground.
(k)
Mixed-use residential: Two or more residential dwellings within a mixed-use structure, which is defined as a single building containing more than one type of land use. Typically these are two or more stories tall with nonresidential uses on the ground floor. Both residential and nonresidential uses have a clear principal use presence. A single residential unit within a mixed-use situation shall be treated as an accessory dwelling unit. Mixed-use residential uses shall adhere to the following listed regulations:
(1)
Evidence that covenants specifying respective obligations with regard to any common structures, such as the shared wall, roof, and other inseparable improvements, are required.
(2)
A minimum of one parking space per 300 square feet of gross floor area shall be provided for nonresidential units.
(3)
A minimum of one parking space shall be provided for each dwelling unit.
(l)
Existing residential: All existing residential land uses as of the effective date of the ordinance codified in this chapter.
(Ord. No. 090412-02, § 1, 9-4-2012)
(a)
Office. Exclusively indoor land uses whose primary functions are the handling of information or administrative services. Such land uses do not typically provide services directly to customers on a walk-in or on-appointment basis. Office land uses shall adhere to the following listed regulations:
(1)
A bufferyard with a minimum opacity of 0.60 shall be provided along all property abutting residentially zoned property.
(2)
A minimum of four parking spaces per every 1,000 square feet of primary floor area shall be provided.
(b)
Personal or professional service. Exclusively indoor land uses whose primary function is the provision of services directly to an individual on a walk-in or appointment basis. Examples of personal or professional services include, but are not limited to: insurance or financial services, realty offices, hospitals, medical offices and clinics, veterinary clinics, barber shops, beauty shops, and related land uses. Personal or professional service land uses shall adhere to the following listed regulations:
(1)
A bufferyard with a minimum opacity of 0.60 shall be provided along all property abutting residentially zoned property.
(2)
Generally, a minimum of four parking spaces per every 1,000 square feet of primary floor area shall be provided; however, the following specific requirements may apply:
a.
Banks and savings and loans shall also provide four stacking spaces for each teller window.
b.
Hospitals, medical and dental clinics shall provide two spaces for every 1,000 square feet of primary floor area, plus four spaces for each 1,000 square feet of outpatient clinic.
(c)
Artisan studio. A building or portion thereof used for the preparation, display, and sale of individually crafted artwork, jewelry, furniture, sculpture, pottery, leather, hand-woven articles, and related items, as either a principal use or accessory use. A studio is used by no more than three artists or artisans. An artisan production shop is an artisan studio used by more than three artists or artisans. Artisan land uses shall adhere to the following listed regulations:
(1)
A bufferyard with a minimum opacity of 0.60 shall be provided along all property abutting residentially zoned property.
(2)
A minimum of one parking space per every 250 square feet of primary floor area shall be provided.
(d)
Indoor sales or service. Land uses which conduct sales or display merchandise or equipment, or provide nonpersonal or nonprofessional services entirely within an enclosed building. Indoor sales or services land uses may include, but are not limited to: self-services facilities such as coin-operated laundromats. Display of products outside of an enclosed building shall instead be considered an incidental outdoor display accessory use or, if outdoor sales exceed 15 percent of the total sales area of the building(s) on the property, an outdoor display principal land use. Indoor sales or service land uses shall adhere to the following listed regulations:
(1)
A bufferyard with a minimum opacity of 0.60 shall be provided along all property abutting residentially zoned property.
(2)
A minimum of four parking spaces per 1,000 square feet of primary floor area shall be provided.
(e)
Outdoor display. Land uses which conduct sales and display merchandise or equipment outside of an enclosed building. Outdoor display land uses may include, but are not limited to: garden centers, recreation equipment sales, monument sales, and manufactured and mobile housing sales. Such land uses do not include vehicle rental or sales (see subsection 18-56(p)) or the storage or display of inoperable equipment, or other materials typically associated with a junkyard or salvage yard (see subsection 18-62(d)). If a land use displays for sale or rent only a limited amount of product outside of an enclosed building, such use may instead be considered incidental indoor sales under subsection 18-64(p). Outdoor display land uses shall adhere to the following listed regulations:
(1)
The area of outdoor sales shall be calculated as the area which would be enclosed by a required physical separation installed and continually maintained in the most efficient manner which completely encloses all materials displayed outdoors.
(2)
A bufferyard with a minimum opacity of 0.60 shall be provided along all property abutting residentially zoned property.
(3)
The display of items shall not be permitted in required setback areas, landscape areas or bufferyards.
(4)
Display areas shall be separated from any circulation area by a minimum of ten feet. This separation shall be clearly delimited by a physical separation such as a greenway, curb, fence, or line of planters, or by a clearly marked paved area.
(5)
Signs, screening, enclosures, landscaping, or materials being displayed shall not interfere in any manner with either on-site or off-site traffic visibility, including potential vehicle/vehicle and vehicle/pedestrian conflicts.
(6)
Outdoor display shall be permitted during the entire calendar year, however, if goods are removed from the display area all support fixtures used to display the goods shall be removed within ten calendar days of the goods' removal.
(7)
A minimum of one parking space per every 250 square feet of primary floor area shall be provided. In no event shall the display of items reduce or inhibit the use or number of parking stalls provided on the property below what is required by this section. If the number of provided parking stalls on the property is already less than the requirement, such display area shall not further reduce the number of parking stalls already present.
(f)
Indoor entertainment. Land uses where entertainment services are provided entirely within an enclosed building. Such activities often have operating hours that extend beyond most other commercial land uses. Indoor entertainment land uses may include, but are not limited to: restaurants, taverns, theaters, health or fitness centers, indoor commercial swimming pools, all forms of training studios (dance, art, yoga, martial arts, etc.), bowling alleys, arcades, roller rinks, and pool halls. Indoor entertainment land uses shall adhere to the following listed regulations:
(1)
No customer entrance of any kind shall be permitted within 150 feet of a residentially zoned property.
(2)
A bufferyard with a minimum opacity of 0.60 shall be provided along all property abutting residentially zoned property.
(3)
A minimum of one parking space per 400 square feet of primary floor area.
(g)
Outdoor entertainment.
(1)
Minor outdoor food and beverage seating. Land uses limited to outdoor consumption of food and beverages. Permitted by right, subject to all of the following requirements:
a.
The maximum number of outdoor seats shall be 50.
b.
Hours of outdoor operation limited to 6:00 a.m. to 11:00 p.m. daily.
c.
Any outdoor noise, including live music and voices, shall comply with all village noise regulations. Amplified sound is not permitted, except within or adjacent to the Lake Street right-of-way between Kinzie Avenue and Fontana Beach, where it is permitted 10:00 a.m. to 11:00 p.m. daily.
d.
Any outdoor lighting shall comply with all village lighting regulations. In addition, the maximum intensity of any outdoor light element shall be a maximum of 100 watts incandescent or its equivalent with another form of lighting. All outdoor lighting fixtures shall have a full 90 degree cutoff and shall be oriented straight down. The maximum fixture mounting height of all outdoor lighting shall be 12 feet above grade directly under the fixture.
e.
A bufferyard with an opacity of at least 0.2 shall be provided around the perimeter of the activity area except where adjacent to an on-site building or if located within or adjacent to a right-of-way.
f.
The entire area used for outdoor food and beverage seating shall be located a minimum of 100 feet from any parcel within a Residential Zoning District as defined in section 18-21 of the zoning ordinance, including the LR-0, SR-I, SR- 2, SR-4, SR-5, AR-6, MR-8, and MR-12 Zoning Districts; or from any parcel containing only residential units within a Planned Development Zoning District. The separation requirement between an outdoor food and beverage seating area and residential dwelling units within the same Planned Development Zoning District shall be subject to the provisions of the planned development.
g.
Alcohol service or consumption is not permitted within this land use.
(2)
Major outdoor food and beverage seating. Land uses limited to outdoor consumption of food and beverages. Permitted by granting of a conditional use permit, subject to all of the following requirements:
a.
The maximum number of outdoor seats shall be 150.
b.
Hours of outdoor operation limited to 6:00 a.m. to 11:00 p.m. daily.
c.
Any outdoor noise, including live music and voices, shall comply with all village noise regulations. Amplified sound is not permitted, except within or adjacent to the Lake Street right-of-way between Kinzie Avenue and Fontana Beach, where it is permitted 10:00 a.m. to 11:00 p.m. daily.
d.
Any outdoor lighting shall comply with all village lighting regulations. In addition, the maximum intensity of any outdoor light element shall be a maximum of 100 watts incandescent or its equivalent with another form of lighting. All outdoor lighting fixtures shall have a full 90 degree cutoff and shall be oriented straight down. The maximum fixture mounting height of all outdoor lighting shall be 12 feet above grade directly under the fixture.
e.
A bufferyard with an opacity of at least 0.3 shall be provided around the perimeter of the activity area except where adjacent to an on-site building or if located within or adjacent to a right-of-way.
f.
The entire area used for outdoor food and beverage seating shall be located a minimum of 200 feet from any parcel within a Residential Zoning District as defined in section 18-21 of the zoning ordinance, including the LR-0, SR-I, SR- 2, SR-4, SR-5, AR-6, MR-8, and MR-12 Zoning Districts; or from any parcel containing only residential units within a Planned Development Zoning District. The separation requirement between an outdoor food and beverage seating area and residential dwelling units within the same Planned Development Zoning District shall be subject to the provisions of the planned development.
g.
Alcohol service or consumption is permitted per the limitations of a village license.
h.
Any other requirements or limitations approved during the conditional use process.
(3)
Minor Outdoor Commercial Entertainment. Land uses which provide entertainment services partially or wholly outside of an enclosed building. Such activities may have the potential to be associated with nuisances related to noise, lighting, dust, trash, and late operating hours. Examples of minor outdoor commercial entertainment land uses include but are not limited to, outdoor consumption of food and beverages with beer gardens and similar areas oriented to outdoor drinking more than outdoor dining; and outdoor assembly areas for public and private ceremonies and performance with more than 150 seats that are not otherwise considered major outdoor commercial entertainment land uses. Permitted by granting of a conditional use permit, subject to all of the following:
a.
There is no limitation on the number of outdoor seats, unless imposed by the requirements of the conditional use permit.
b.
Hours of outdoor operation limited hours of outdoor operation limited to 6:00 a.m. to 11:00 p.m. daily.
c.
Any outdoor noise, including live music and voices, shall comply with all village noise regulations. Amplified sound is permitted after 10:00 a.m. until 11:00 p.m., daily.
d.
Any outdoor lighting shall comply with all village lighting regulations.
e.
A bufferyard with an opacity of at least 0.5 shall be provided around the perimeter of the activity area except where adjacent to an on-site building or if located within or adjacent to a right-of-way.
f.
The entire area used for outdoor commercial entertainment shall be located a minimum of 300 feet from any parcel within a Residential Zoning District as defined in section 18-21 of the zoning ordinance, including the LR-0, SR-1, SR- 2, SR-4, SR-5, AR-6, MR-8, and MR-12 Zoning Districts; or from any parcel containing only residential units within a Planned Development Zoning District. The separation requirement between a minor outdoor commercial entertainment activity area and residential dwelling units within the same Planned Development Zoning District shall be subject to the provisions of the planned development.
g.
Alcohol service or consumption is permitted per the limitation of a village license.
h.
Any other requirements or limitations approved during the conditional use process.
(4)
Major outdoor commercial entertainment. Land uses which provide entertainment services partially or wholly outside of an enclosed building and that generate regional traffic and may likely generate lighting and noise impacts well beyond property lines. Examples of major outdoor commercial entertainment land uses include, but are not limited to, race tracks, amusement parks, water parks or outdoor commercial swimming pools, fair grounds, outdoor stadiums and arenas, outdoor theaters oriented to high-impact performances, drive-in theaters, driving ranges, miniature golf facilities, go-cart tracks, and tournament-oriented athletic facilities with more than 250 parking spaces. Permitted by granting of a conditional use permit, subject to all of the following:
a.
There is no limitation on the number of seats, unless imposed by the requirements of the conditional use permit.
b.
Hours of operation limited to 6:00 a.m. to 11:00 p.m. daily.
c.
Any outdoor noise, including live music and voices, shall comply with all village noise regulations. Amplified sound is permitted after 10:00 a.m. until 11:00 p.m., daily.
d.
Any outdoor lighting shall comply with all village lighting regulations.
e.
A bufferyard with an opacity of at least 1.0 shall be provided around the perimeter of the activity area except where adjacent to an on-site building or if located within or adjacent to a right-of-way.
f.
The entire area used for outdoor commercial entertainment shall be located a minimum of 500 feet from any parcel within a Residential Zoning District as defined in section 18-21 of the zoning ordinance, including the LR-0, SR-1, SR-2, SR-4, SR-5, AR-6, MR-8, and MR-12 Zoning Districts; or from any parcel containing only residential units within a Planned Development Zoning District. The separation requirement between a major outdoor commercial entertainment activity area and residential dwelling units within the same Planned Development Zoning District shall be subject to the provisions of the planned development.
g.
Any other requirements or limitations approved during the conditional use process.
(h)
In-vehicle sales or service. Land uses where sales and/or services are provided to persons in vehicles, or to vehicles which may or may not be occupied at the time of such activity (except vehicle repair and maintenance services). Such land uses often have traffic volumes which exhibit their highest levels concurrent with peak traffic flows on adjacent roads. In-vehicle sales or service land uses may include, but are not limited to, drive-in, drive-up, and drive-through facilities, vehicular fuel stations, and all forms of car washes. If performed in conjunction with a principal land use (e.g., a convenience store, restaurant or bank), in-vehicle sales and service land uses shall be considered an accessory use.
(1)
A bufferyard with a minimum opacity of 0.60 along all property borders abutting residentially zoned property shall be provided.
(2)
Except where approved by conditional use permit, each drive-up lane shall have a minimum stacking length of 100 feet behind the pass through window and 40 feet beyond the pass through window.
(3)
The drive-through facility shall be designed so as to not impede or impair vehicular and pedestrian traffic movement, or exacerbate the potential for pedestrian/vehicular conflicts.
(4)
Clearly marked pedestrian crosswalks shall be provided for each walk-in customer access to the facility adjacent to the drive-through lane(s).
(5)
In no instance shall a drive-through facility be permitted to operate which endangers the public safety, even if such land use has been permitted under the provisions of this section.
(6)
The setback of any overhead canopy or similar structure shall be a minimum of ten feet from all street rights-of-way lines, a minimum of 20 feet from all residentially-zoned property lines, and shall be a minimum of five feet from all other property lines. The total height of any overhead canopy or similar structure shall not exceed 20 feet per the measurement of roof height.
(7)
All vehicular areas of the facility shall provide a surface paved with concrete or bituminous material which is designed to meet the requirements of a minimum four-ton axle load.
(8)
Interior curbs shall be used to separate driving areas from exterior fixtures such as fuel pumps, vacuums, menu boards, canopy supports, and landscaped islands. Said curbs shall be a minimum of six inches high and shall be of a nonmountable design. No curb protecting an exterior fixture shall be located closer than 25 feet to all property lines.
(9)
Any text or logo larger than one square foot per side on an overhead canopy or other accessory structure shall be considered a freestanding sign subject to regulation under article XII of this chapter.
(10)
Refer to the parking requirements of the other land use activities on the site, such as indoor sales and service land uses for a gas station/convenience store, or office land uses for a bank.
(i)
Bed and breakfast establishment. Bed and breakfast establishments are indoor lodging facilities in compliance with Wis. Stats. 254.61(1), that is the owner's personal residence, is occupied by the owner at the time of rental to guests, and in which the only meal served is breakfast served only to guests. Such land uses may provide indoor recreational facilities for the exclusive use of their customers. Bed and breakfast establishments shall adhere to the following additional listed regulations:
(1)
No premises shall be utilized for a bed and breakfast establishment unless there are at least two exits to the outdoors from such premises.
(2)
No bedroom shall be located in an accessory structure.
(3)
Rooms utilized for sleeping shall have a minimum size of 100 square feet for every two occupants with an additional 30 square feet for each additional occupant to a maximum of four occupants per room.
(4)
All habitable areas or rooms shall have code compliant smoke detectors/alarms and carbon dioxide detectors/alarms.
(5)
One lavatory and bathing facility shall be required for every ten occupants, in addition to the owner/occupant personal facilities.
(6)
Each such establishment shall be inspected annually by the building inspector to verify that the land use continues to meet all applicable regulations. A fee for such annual inspection shall be imposed by the village.
(7)
Each operator shall keep a list of names of all persons staying at the bed and breakfast establishment. This list shall be kept on file for a period of one year. Such list shall be available for inspection by village officials at any time.
(8)
The maximum stay for occupants of bed and breakfast operations shall be 14 consecutive days.
(9)
No retail sales shall occur in a bed and breakfast establishment.
(10)
A minimum of one parking space per each bedroom in addition to requirements for principal residents shall be provided.
(11)
Requirements specific to the Village of Fontana:
a.
A bufferyard with a minimum opacity of 0.60 along the property borders abutting residentially zoned property shall be provided.
b.
If alcoholic beverages of any kind are to be served on the premises, the owner of the establishment shall first obtain the appropriate license in accordance with Village of Fontana and state regulations.
c.
One sign, with a maximum area of 20 square feet, shall be permitted on the property.
(12)
Requirements specific to the extraterritorial zoning area:
a.
The structure was originally built and occupied as a single-family residence, or prior was to the use as a place of lodging, was converted to use and occupied as a single-family residence.
b.
No more than four bedrooms shall be permitted to be rented to no more than a total of ten tourists or transients within permitted zoning districts; except that within the B-6 zoning district, no more than eight bedrooms shall be permitted to be rented to no more than a total of 20 tourists or transients.
c.
One exterior sign with a maximum area of nine square feet, a maximum height of six feet, and a minimum setback of five feet from any street or highway right-of-way line, a minimum of ten feet from any side or rear property line, and a minimum 50 feet from any intersection.
(13)
Additional requirements within the village and the extraterritorial area:
a.
Application requirements. Applicants for a license to operate a bed and breakfast shall submit a floor plan of the single-family dwelling unit illustrating that the proposed operation will comply with the requirements of this chapter, state building codes, and other applicable village codes and ordinances.
b.
Consideration of issuance. After the application has been filed with the village clerk, the plan commission shall review and provide a recommendation to the village board for a conditional use permit. The plan commission shall hold a public hearing and determine whether any further license shall be issued based upon the public convenience and necessity of the people in the village. In the village's determination of the number of bed and breakfast operations required to provide for such public convenience and necessity, the village board shall consider the effect upon residential neighborhoods, conditions of existing holders of licenses, and the necessity of issuance of additional licenses for public service.
c.
Public nuisance violations. Bed and breakfast operations shall not be permitted whenever the operation endangers, offends, or interferes with the safety or rights of others so as to constitute a nuisance.
d.
Suspension, revocation and renewal. Any license issued under the provisions of this chapter may be revoked by the village board for good cause shown after investigation and opportunity to the holder of such license to be heard in opposition thereto; in such investigation the compliance or noncompliance with the state law and local ordinances, the conduct of the licensee in regard to the public, and other consideration shall be weighed in determination of such issue.
(j)
Commercial indoor lodging. Facilities which provide overnight housing in individual rooms or suites of rooms, each room or suite having a private bathroom. Such land uses may provide in-room or in-suite kitchens, and may also provide indoor recreational facilities for the exclusive use of their customers. Restaurant, lounge, fitness centers, and other on-site facilities available to nonlodgers are considered accessory uses and therefore require review as a separate land use. Commercial indoor lodging land uses shall adhere to the following listed regulations:
(1)
No customer entrance of any kind shall be permitted within 100 feet of a residentially zoned property.
(2)
A bufferyard with a minimum opacity of 0.60 shall be provided along all property abutting residentially zoned property.
(3)
Each and every room must take primary access via an individual interior door, and may not be accessed via an external balcony, porch or deck, except for emergency purposes.
(4)
A minimum of one parking space per bedroom, plus one space for each employee on the largest work shift, shall be provided.
(k)
Boarding house. Any residential use renting rooms which do not contain private kitchen and/or bathroom facilities. Boarding houses shall adhere to the following listed regulations:
(1)
A bufferyard with a minimum opacity of 0.60 shall be provided along all property abutting residentially zoned property.
(2)
Shall only be located in an area of transition from residential land uses to nonresidential land uses, as determined by the zoning administrator.
(3)
A minimum of one parking space per each bedroom for rent, in addition to requirements for principle residents shall be provided.
(l)
Group day care center (9+ children). Centers where qualified persons provide child care services for nine or more children. Examples include day care centers and nursery schools. Such land uses may be operated on a for-profit or a not-for-profit basis and may be operated in conjunction with another principal land use on the same environs, such as a church, school, business, or civic organization. In such instances, group day care centers are considered as accessory uses and therefore require review as a separate land use. Group day care centers shall adhere to the following listed regulations:
(1)
Group day care centers shall not be located within a residential building.
(2)
A bufferyard with a minimum opacity of 0.50 shall be provided along all property abutting residentially zoned property.
(3)
A minimum of one parking space per five students, plus one space for each employee on the largest work shift shall be provided.
(m)
Commercial animal boarding. Facilities where short-term and/or long-term animal boarding is provided, such as nonresidential kennels and stables. Exercise yards, fields, training areas, and trails associated with such land uses are considered accessory to and do not require separate consideration. Commercial animal boarding facilities shall adhere to the following listed regulations:
(1)
Each animal shall be provided with an indoor containment area.
(2)
The minimum permitted size of horse or similar riding animal stall shall be 100 square feet.
(3)
Special events such as shows, exhibitions and contests shall only be permitted when a temporary use permit has been secured.
(4)
A minimum of one parking space per employee on the largest shift, plus one additional space per every ten stalls.
(n)
Indoor maintenance service. Land uses which perform maintenance services, including repair, and contain all operations (except loading) entirely within an enclosed building. Because of outdoor vehicle storage requirements, vehicle repair and maintenance is considered an outdoor maintenance service land use (see subsection (o)). Indoor maintenance land uses shall adhere to the following listed regulation:
(1)
A minimum of one parking space per 250 square feet of primary floor area shall be provided.
(o)
Outdoor maintenance service. Land uses which perform maintenance services, including repair, and have all, or any portion, of their operations located outside of an enclosed building. Such land uses do not include the storage or display of inoperable equipment, or other materials typically associated with a junkyard or salvage yard (see subsection 18-62(d)). Outdoor maintenance services shall adhere to the following listed regulations:
(1)
A bufferyard with a minimum opacity of 0.60 shall be provided along all property abutting residentially zoned property.
(2)
All outdoor activity areas shall be completely enclosed by a minimum six-foot high fence. Such enclosure shall be located a minimum of 50 feet from any residentially zoned property and shall be screened by required bufferyard.
(3)
A minimum of one parking space per 250 square feet of primary floor area, or one space per each employee on the largest shift, whichever is less, shall be provided.
(p)
Vehicle sales. The outdoor display of vehicles for sale or rent and associated sales building. Such land uses also include a repair shop associated with the vehicle display lot. Such land uses do not include the storage or display of inoperative vehicles or equipment, or other materials typically associated with a salvage or junkyard (see subsection 18-62(d)). Vehicles sales land uses shall adhere to the following regulations:
(1)
The outdoor display and sales area shall be calculated as the area that would be enclosed by a required physical separation installed and continually maintained in the most efficient manner which completely encloses all vehicles displayed outdoors.
(2)
A bufferyard with a minimum opacity of 0.60 shall be provided along all property abutting residentially zoned property.
(3)
The display of vehicles shall not be permitted in required landscaped areas or bufferyards.
(4)
The display of vehicles shall not be permitted within required setback areas for the principal structure.
(5)
Display areas shall be separated from any circulation area by a minimum of ten feet. This separation shall be clearly delimited by a physical separation such as a greenway, curb, fence, or line of planters, or by a clearly marked paved area.
(6)
Signs, screening, enclosures, landscaping, or materials being displayed shall not interfere in any manner with either on-site or off-site traffic visibility, including potential vehicle/vehicle and vehicle/pedestrian conflicts.
(7)
Vehicle sales shall be permitted during the entire calendar year; however, if vehicles are removed from the display area, all support fixtures used to display the vehicles shall be removed within ten calendar days of vehicles removal.
(8)
A minimum of one parking space per every 250 square feet of primary floor area shall be provided. In no event shall the display of vehicles reduce or inhibit the use or number of parking stalls provided on the property below what is required by this section. If the number of provided parking stalls on the property is already less than the requirement, such display area shall not further reduce the number of parking stalls already present.
(q)
Adult-oriented land uses.
(1)
Note. The incorporation of this land use into this chapter is designed to reflect the village board's official finding that adult-oriented land uses have a predominant tendency to produce certain undesirable secondary effects on the surrounding community, as has been demonstrated in other similar jurisdictions. Specifically, the village board is concerned with the potential for such uses to limit the attractiveness of nearby locations for new development, the ability to attract and/or retain customers, and the ability to market and sell nearby properties at a level consistent with similar properties not located near such facilities. It is explicitly not the intent to suppress free expression by unreasonably limiting alternative avenues of communication but rather to balance the need to protect free expression opportunities with the need to implement the village's comprehensive plan and protect the character and integrity of its commercial and residential neighborhoods.
(2)
Definitions. As used in this subsection, the following terms shall have the meanings indicated:
a.
Adult-oriented land uses or adult-oriented establishments: Includes, but is not limited to, adult bookstores, adult motion-picture theaters, adult mini motion-picture establishments or adult cabarets. Includes any premises to which public patrons or members are invited or admitted and which are so physically arranged as to provide booths, cubicles, rooms, compartments or stalls separate from the common areas of the premises for the purpose of viewing adult-oriented motion pictures, or wherein an entertainer provides adult entertainment to a member of the public, a patron or a member, whether or not such adult entertainment is held, conducted, operated or maintained for a profit, direct or indirect.
b.
Adult bookstore: An establishment having as a substantial or significant portion of its stock-in-trade, for sale, rent, lease, inspection or viewing, books, films, video cassettes, magazines or other periodicals which are distinguished or characterized by their emphasis on matters depicting, describing or related to specified anatomical areas, as defined below, or an establishment with a segment or section devoted to the sale, rent, or display of such material.
c.
Adult motion-picture theater: An enclosed building with a capacity of 50 or more persons used for presenting materials distinguished or characterized by an emphasis on matters depicting, describing or relating to specified sexual activities or specified anatomical areas, as defined below, for observation by patrons therein.
d.
Adult mini motion-picture theater: An enclosed building with a capacity of 50 or fewer persons used for presenting materials distinguished or characterized by an emphasis on matters depicting, describing or relating to specified sexual activities or specified anatomical areas, as defined below, for observation by patrons therein.
e.
Adult cabaret: A cabaret which features topless dancers, strippers, male or female impersonators, or similar entertainers.
f.
Adult entertainment: Any exhibition of any motion pictures, live performances, display or dance of any type which has as its dominant theme or is distinguished or characterized by an emphasis on an actual or simulated specified sexual activities or specified anatomical areas, as defined below.
g.
Specified sexual activities (simulated or actual):
1.
Showing of human genitals in a state of sexual stimulation or arousal;
2.
Acts of masturbation, sexual intercourse, sodomy, bestiality, necrophilia, sadomasochistic abuse, fellatio or cunnilingus; and/or
3.
Fondling or erotic touching of human genitals, pubic region, buttocks or female breasts.
h.
Specified anatomical areas: Less than completely and opaquely covered human genitals, pubic region, buttocks and female breasts below the point immediately above the top of the areola; or human male genitals in a discernible turgid state, even if opaquely covered.
(3)
Location of adult-oriented establishments.
a.
Adult-oriented establishments shall only be allowed as a conditional use; provided that such establishments are not located within 500 feet of any residential zone, any public or private school, church, religious institution, or any public park, and shall not be located within 500 feet of any other adult-oriented establishment.
b.
Adult-oriented establishments, as defined above, are prohibited in all zoning except the AH-35 Districts.
(4)
A bufferyard with a minimum opacity of 0.60 shall be provided along all property abutting residentially zoned property.
(5)
Exterior building appearance and signage shall be designed to ensure that the use does not detract from the ability of businesses in the vicinity to attract customers nor affect the marketability of properties in the vicinity for sale at their assessed values.
(6)
The distances provided in this section shall be measured in a straight line without regard to intervening structures or objects from the closest point of the structure or portion of the structure occupied or proposed for occupancy by the adult-oriented establishment to the nearest point of the parcel or property or land use district boundary relined from which the proposed land use is to be separated.
(7)
In all zones where adult-oriented establishments are permitted, all regulations and requirements of this chapter must be met. Additionally, all provisions of the zoning district in which the establishment is located must be met.
(8)
The sections of this subsection are declared to be severable. If any section or portion thereof shall be declared by a decision of a court of competent jurisdiction to be invalid, unlawful or unenforceable, such decision shall apply only to the specified section or portion thereof directly specified in the decision and not affect the validity of all other provisions, sections or portions thereof of the subsection, which shall remain in full force and effect.
(9)
A minimum of four parking space per 1,000 square feet of primary floor area or one space per person at the maximum capacity of the establishment (whichever is greater) shall be provided.
(r)
Resort hotel. Facilities which provide transient overnight housing in individual rooms or suites of rooms, each room or suite having a private bathroom. Resort hotel facilities may include, but are not limited to, the following additional uses or activities: commercial indoor lodging, indoor entertainment, outdoor entertainment, gate shows, indoor sales or service, personal or professional service, artisan studio, office, group day care center, commercial animal boarding, passive outdoor recreation, active outdoor recreation, intensive outdoor recreation, lake-related recreation, off-site parking, and limited duration special activities and events. Resort hotels may include, but are not limited to, the following facilities: meeting rooms, game rooms, restaurants, indoor and outdoor swimming pools, salons, health spas, studios, auditoriums, night clubs, lounges, convention and exhibition halls, bowling alleys, cinemas, theaters, gift shops, travel and ticket agencies, and other similar facilities designed primarily as adjuncts to and principally serving the occupants and guests of the resort. Resort hotels shall adhere to the following listed regulations:
(1)
Resort hotels shall not be used as primary or secondary residences.
(2)
Resort hotels shall adhere to the regulations of the Resort Business District (see section 18-40).
(s)
Vacation rental home. A single-family detached dwelling unit made available to a single party for overnight, weekend, or weekly stays by paying guests which may or may not be owner occupied for part of the year. These uses may include timeshare units. Vacation rental homes shall adhere to the following listed regulations:
(1)
Permitted by right: Village Center Zoning District, Abbey Springs Subdivision, and the Resort Business Subdistricts: The Abbey Resort, Abbey Ridge, and Abbey Villas; permitted as conditional use in the Neighborhood Business and Community Business Zoning Districts.
a.
Land use requirement: Vacation rental homes shall only be located as a commercial land use within a single-family detached dwelling unit as defined in subsection 18-55(a).
b.
Annual village license required: Each vacation rental home hall operate only during the valid period of an annual Village of Fontana vacation rental home license for each calendar year. Operating a vacation rental home without a current version of a valid license shall be considered a violation of this zoning ordinance, and subject to the penalties of section 18-257. The following information shall be provided on an annual basis, prior to issuance of said annual Village of Fontana vacation rental home license:
1.
Completed Village of Fontana vacation rental home application, which included the property owner name, address, and phone number; the designated operator's name, address, and phone number; and the period of operation;
2.
A current floor plan for the vacation rental home at a minimum scale of one-inch equals four feet, and site plan of the property at a minimum scale of one-inch equals ten feet showing on-site parking spaces and trash storage areas;
3.
General building code inspection by village, and submittal of official building code inspection report with no outstanding compliance orders remaining;
4.
Fire code inspection by village, and submittal of official fire code inspection report with no outstanding compliance orders remaining;
5.
Proof of valid property and liability insurance for the dwelling unit;
6.
State of Wisconsin tourist rooming house license;
7.
Seller's permit issued by the Wisconsin Department of Revenue;
8.
Village of Fontana room tax permit; and
9.
Payment of an administrative fee, set annually by the village board, to cover the costs to the village for administering the above.
The Village of Fontana vacation rental home license shall be issued with the completion of the above requirements.
c.
Property management requirements: Each vacation rental home shall be managed consistent with the following requirements:
1.
Similar facilities in which single-family detached homes are available for a minimum seven consecutive days, and up to 180 days, are a different land use that fall within the tourist rooming house land use category. See subsection 18-64(x).
2.
The maximum number of occupants shall not exceed the total number licensed by the State of Wisconsin or two per bedroom plus two additional occupants, whichever is less.
3.
The vacation rental home shall be operated by the property owner or by a property manager explicitly designated in the valid Fontana vacation rental home as the "designated operator".
4.
The property owner's and the designated operator's names, addresses, and 24-hour phone numbers shall be provided in the Village of Fontana vacation rental home application and shall be updated within 24 hours upon any change in the property manager or the property manager contact information.
5.
The designated operator must reside within, or have their business located within, 25 miles of the vacation rental home parcel.
6.
The designated operator must be available by phone 24 hours, seven days a week, during the period of operation designated in the Fontana vacation rental home application.
7.
Each vacation rental home shall provide and maintain a guest register and shall require all guests to register their true names and addresses before allowing occupancy. The guest register shall be kept intact and available by the designated operator for inspection by representatives of the village for at least one year from the day of the conclusion of the period of operation.
8.
Each vacation rental home shall maintain the following written business record for each rental of the vacation rental home: the true names and addresses of any person renting the property, the dates of the rental period (which must be a minimum of seven consecutive days), and the monetary amount or consideration paid for the rental. The business record shall be kept intact and available by the designated operator for inspection by the representatives of the village for at least one year from the day of the conclusion of the period of operation.
d.
Property operational requirements: Each vacation rental home shall be operated per the following requirements:
1.
The "requirements for vacation rental home guests" form provided by the Village of Fontana to summarize village requirements for vacation rental homes, and the site plan for the subject property clearly depicting guest parking spaces and the rear yard, shall be posted on the inside of the front door of each vacation rental home throughout its period of operation.
2.
Parking. All vacation rental homes outside of the Abbey Resort Subdistrict (18-40(I)), Abbey Villas Subdistrict (18-40(II)), Abbey Ridge Subdistrict (18-40(III)), and Abbey Springs Subdivision are subject to the following requirements:
i.
A minimum of two off-street parking spaces shall be provided on the subject property for each vacation rental home. If the vacation rental home provides three or more bedrooms, and additional on-site parking space is required for each additional bedroom over two.
ii.
All guest parking for vehicles and trailers shall be within a parking space designated on the site plan, on an area paved with concrete or asphalt.
iii.
All guest vehicles and trailers may only park on-site. Street parking for guests is not permitted.
iv.
No parking is permitted on gravel, lawn, or planter bed areas.
3.
Site appearance requirements:
i.
Aside from a changing mix of guests and their vehicles, there shall be no evidence of the property being used as a vacation rental home visible on the exterior of the subject property.
ii.
No exterior signage related to the vacation rental home is permitted, other than the property address.
iii.
No outdoor storage related to the vacation rental home land use is permitted, except for typical residential recreational equipment, seating, and outdoor cooking facilities which are permitted only within the rear yard.
iv.
No recreational vehicles, camper, tent, or other temporary lodging arrangement shall be permitted to accommodate guests.
4.
Neighborhood impact requirements:
i.
No outdoor activity shall occur between the hours of 10:00 p.m. and 7:00 a.m.
ii.
At all times, no noise, lighting, odor or other impacts from the subject property shall be detectable at the property line at levels exceeding the requirements of article 13 of the Fontana Zoning Ordinance.
iii.
No vehicular traffic shall be generated by the vacation rental home at levels exceeding those typical for a detached single-family dwelling unit.
5.
Vacation rental home advertising:
i.
No outdoor advertising is allowed on the subject property.
ii.
The vacation rental home shall not be advertised for availability in any form of media unless the required Village of Fontana vacation rental home license has been issued.
e.
Penalties and license revocation:
1.
Violations of the requirements for vacation rental homes, the provisions of the vacation rental home license, and all other requirements of the zoning ordinance are subject to separate daily fines per section 18-257. Violations will be issued to, and will be the responsibility of, the property owner.
2.
The annual vacation rental home license may be revoked for more than two violations of the requirements of the license, the requirements specific to vacation rental homes, the license, or the remainder of zoning code.
(t)
Outdoor boat display and sales. Land uses where the outdoor display of boats on stands, trailers, or pedestals is conducted outside of an enclosed building. This land use is limited to boats as defined in section 18-13. Outdoor boat display and sales land uses shall adhere to the following regulations:
(1)
Requires a limited conditional use permit specifying the following:
a.
Granted to a specific operator.
b.
Granted up to a maximum of five years.
c.
The maximum number of boats shall be established by the limited conditional use.
(2)
The following watercraft and equipment may not be displayed outside:
a.
Personal watercraft (i.e., jet skis).
b.
Manually propelled (i.e., canoe, kayak, raft, inflatable paddle board, paddle boats, surf boards).
c.
Empty trailers and/or other boat accessory equipment.
(3)
Boat display area must be located on a gravel surface or be paved with concrete or asphalt.
(4)
Boat display land uses may be established without a principal building on-site.
(5)
Signage is limited to a monument sign or a temporary business sign. Signs on individual boats shall be less than one square foot.
(Ord. No. 090412-02, § 1, 9-4-2012; Ord. No. 061118-02, § 2, 6-11-2018; Ord. No. 030519-01, § 5, 3-5-2019; Ord. No. 040419-01, § II, 4-4-2019; Ord. No. 090919-03, § 1, 9-9-2019; Ord. No. 050123-02, § 1, 5-1-2023)
(a)
Campground. Facilities designed for overnight accommodation of persons in tents, travel trailers, recreational vehicles, or other mobile or portable shelters. Campgrounds shall adhere to the following listed regulations:
(1)
A bufferyard with a minimum opacity of 0.70 shall be provided along all property abutting residentially zoned property.
(2)
A minimum of 1½ parking spaces shall be provided per campsite.
(b)
Passive outdoor recreation. Recreational land uses, located on public or private property, where passive recreational activities are provided. Passive outdoor recreation land uses may include, but are not limited to, arboretums, natural areas, wildlife areas, hiking trails, bike trails, cross country ski trails, horse trails, picnic areas, picnic shelters, botanical gardens, fishing areas, and similar land uses.
(1)
A minimum of one parking space per four expected patrons at maximum capacity shall be required.
(c)
Active outdoor recreation. Recreational land uses, located on public or private property, where low-impact, active recreational activities are provided. Active outdoor recreation land uses may include, but are not limited to, play courts (e.g., tennis and basketball courts), playfields (e.g., ball diamonds, football fields, and soccer fields), neighborhood parks, tot lots, swimming beach areas, fitness courses, golf courses, and incidental land uses such as concession stands, public restrooms, and beach shower facilities. Note that high-attendance facilities oriented to nonresident users or attendees and intensively lit tournament-oriented outdoor facilities are considered intensive outdoor activity land uses (see subsection 18-57(d)). Active outdoor public recreation land uses shall adhere to the following listed regulations:
(1)
A bufferyard with a minimum opacity of 0.60 shall be provided along all property abutting residentially zoned property and for any facility requiring night lighting.
(2)
All structures and active recreational areas shall be located a minimum of 50 feet from any residentially zoned property.
(3)
Facilities serving a regional or community-wide function shall provide an off-street passenger loading area if the majority of the users will be children.
(4)
A minimum of one parking space per every four expected patrons at maximum capacity shall be provided; however, the following specific parking requirements may apply:
a.
Tennis court: Two spaces per court.
b.
Golf course: Thirty-six spaces per nine holes, plus one space per employee on the largest work shift, plus 50 percent of spaces otherwise required for any accessory uses (e.g., bars, restaurant).
(d)
Reserved.
(e)
Lake-related recreation. Lake-related recreational facilities such as marinas and yacht clubs, bait shops, boat launching ramps, boat slips, boat storage, docking facilities, liveries, and boat repair and maintenance facilities, including gasoline pumps for marine use. Lake-related recreation land uses shall adhere to the following listed regulations:
(1)
Outdoor lighting installations shall be so located and shielded that no objectionable glare or excessive illumination is cast upon adjoining property.
(2)
A minimum of one parking space per every four expected patrons at maximum capacity shall be provided.
(Ord. No. 090412-02, § 1, 9-4-2012; Ord. No. 050123-02, § 2, 5-1-2023)
(a)
Indoor institutional. Indoor public and not for profit recreational facilities (such as gyms, indoor swimming pools, libraries, museums and community centers), schools, churches, nonprofit clubs, nonprofit fraternal organizations, convention centers, jails, prisons, and similar land uses. Indoor institutional land uses shall adhere to the following listed regulations:
(1)
An off-street passenger loading area shall be provided if the majority of the users will be children (as in the case of a school, church, library, or similar land use).
(2)
All structures shall be located a minimum of 50 feet from any residentially zoned property.
(3)
Generally, a minimum of one space per three expected patrons at maximum capacity shall be provided; however, the following specific requirements may apply:
a.
Churches and auditoriums: One space per three seats at the maximum capacity.
b.
Community or recreation center: One space per 250 square feet of primary floor area, or one space per four patrons to the maximum capacity, whichever is greater, plus one space per employee on the largest work shift.
c.
Funeral home: Six spaces per 1,000 square feet of principal floor area, or one space for every four chapel seats, whichever is greater.
d.
Library or museum: One space per 250 square feet of primary floor area, plus one space per employee on the largest work shift.
e.
Elementary and secondary schools: Two spaces per classroom (schools with auditoriums shall be governed by requirements for auditoriums).
f.
Post secondary school: One space per three students at peak hour attendance.
(b)
Outdoor institutional. Privately held permanently protected green space areas, cemeteries, and open grassed areas not associated with any particular recreational. Outdoor institutional land uses shall adhere to the following listed regulations:
(1)
All structures shall be located a minimum of 50 feet from any residentially zoned property.
(2)
No parking is required for outdoor open space institutional land uses; however, for uses accessory to cemeteries (e.g., cemeteries or mausoleums), parking may be required per the recommendation of the plan commission or zoning administrator.
(c)
Public service and utilities. All village, county, state, and federally owned facilities (except those otherwise treated in this chapter), emergency service facilities (e.g., fire departments and rescue operations), wastewater treatment plants, public and/or private utility substations, water towers, utility and public service related distribution facilities, public parking lots, and similar land uses. Public service and utility land uses shall adhere to the following listed regulations:
(1)
All structures shall be located a minimum of 20 feet from any residentially zoned property.
(2)
Outdoor storage areas shall be located a minimum of 50 feet from any residentially zoned property.
(3)
The exterior of all buildings shall be compatible with the exteriors of surrounding buildings.
(4)
All outdoor storage areas adjoining a residentially zoned property shall install and continually maintain a bufferyard with a minimum opacity of 0.60.
(5)
A minimum of one parking space per employee on the largest work shift shall be provided, plus one space per company vehicle normally stored or parked on the premises.
(d)
Institutional residential. A form of residential development designed to accommodate residential uses such as: senior housing, retirement homes, assisted living facilities, nursing homes, hospices, group homes, convents, monasteries, dormitories, nursing homes, convalescent homes, limited care facilities, rehabilitation centers, and similar land uses not considered to be community living arrangements (see subsections 18-58(e), (f), (g)). Institutional residential land uses shall adhere to the following listed regulations:
(1)
No individual lots are required, although the development shall contain a minimum of 800 square feet of gross site area for each occupant of the development.
(2)
Project shall provide an off-street passenger loading area at a minimum of one location within the development.
(3)
A minimum of one parking space for every five beds or individual living unit, plus one pace for each two employees shall be provided.
(e)
Community living arrangement (1—8 residents). Facilities provided for in Wis. Stats. § 46.03(22), including child welfare agencies, group homes for children, foster homes, treatment foster homes, adult family homes, and community-based residential facilities. Community living arrangements do not include group day care centers, nursing homes, hospitals, prisons, or jails (see subsection 18-58(d)). Community living arrangement facilities are regulated depending upon their capacity as provided for in Wis. Stats. § 62.23(7)(i), provided any such regulations do not violate federal or state housing or anti-discrimination laws. Community living arrangements housing up to eight residents shall adhere to the following listed regulations:
(1)
No community living arrangement shall be established within 2,500 feet of any other such facility regardless of its capacity unless the plan commission and village board agree to a reduction in spacing.
(2)
The applicant shall demonstrate that the total capacity of all community living arrangements (of all capacities) in the village shall not exceed one percent of the village's population (unless specifically authorized by the village board following a public hearing).
(3)
Foster homes housing four or fewer children and licensed under Wis. Stats. § 48.62, shall not be subject to subsection (1), above, and shall not be subject to or count toward the total arrived at in subsection (2), above.
(4)
A minimum of three parking spaces shall be provided.
(f)
Community living arrangement (9—15 residents). See description under subsection (e), above. Community living arrangements housing nine to 15 residents shall adhere to the following listed regulations:
(1)
No community living arrangement shall be established within 2,500 feet of any other such facility, regardless of capacity unless the plan commission and village board agree to a reduction in spacing.
(2)
The applicant shall demonstrate that the total capacity of all community living arrangements (of all capacities) in the village shall not exceed one percent of the village's population (unless specifically authorized by the village board following a public hearing).
(3)
A minimum of three parking spaces shall be provided, plus one space for every three residents over eight residents.
(g)
Community living arrangement (16+ residents). See description under subsection (e), above. Community living arrangements housing 16 or more residents shall adhere to the following listed regulations:
(1)
No community living arrangement shall be established within 2,500 feet of any other such facility, regardless of capacity unless the plan commission and village board agree to a reduction in spacing.
(2)
The total capacity of all community living arrangements (of all capacities) in the village shall not exceed one percent of the village's population (unless specifically authorized by the village board following a public hearing).
(3)
A minimum of three parking spaces shall be provided, plus one space for every three residents over eight residents.
(Ord. No. 090412-02, § 1, 9-4-2012)
(a)
Light industrial. Industrial land uses where all operations (with the exception of loading operations) are conducted entirely within an enclosed building. Light industrial uses do not emit odor, noise, heat, vibration and radiation which are detectable at the property line; do not pose a significant safety hazard (such as danger of explosion); and comply with applicable performance standards in article X. Light industrial land uses may conduct indoor sales as an accessory use provided that the requirements of subsection 18-64(p) are complied with. Light industrial land uses shall adhere to the following listed regulations:
(1)
A bufferyard with a minimum opacity of 0.80 shall be provided along all property abutting residentially zoned property.
(2)
All activities, except loading and unloading, shall be conducted entirely within the confines of a building.
(3)
In no instance shall loading and unloading areas be located within a required setback or bufferyard.
(4)
A minimum of two parking spaces per each employee on the largest work shift shall be provided.
(b)
Heavy industrial. Industrial land uses where operations may be wholly or partially located outside of an enclosed building. Heavy industrial uses have the potential to create certain nuisances which are detectable at the property line and may involve materials which pose a significant safety hazard. Examples of heavy industrial land uses include production of meat, paper, pulp, paperboard, chemicals, allied products (except drug producers), fertilizers, petroleum, coal, asphalt, concrete, cement, stone, clay, glass, primary metal, heavy machinery, electrical distribution equipment, electrical industrial apparatus, or transportation vehicles. Heavy industries may also include, but are not limited to, tanneries, commercial sanitary sewage treatment plants, railroad switching yards, recycling facilities not involving the on-site storage of salvage materials, and large-scale alcoholic beverage producers exceeding the production limits in Wis. Stats. ch. 125. Heavy industrial land uses shall adhere to the following listed regulations:
(1)
A bufferyard with a minimum opacity of 1.0 shall be provided along all borders of the property abutting property that is not zoned RP, with the exception of adjacent land held in permanent open space.
(2)
All outdoor activity areas shall be located a minimum of 100 feet from residentially zoned property.
(3)
No equipment or materials shall be stacked or otherwise stored so as to be visible over bufferyard screening elements.
(4)
In no instance shall a heavy industrial land use exceed performance standards listed in article XIII.
(5)
A minimum of two parking spaces per each employee on the largest work shift shall be provided.
(c)
Production greenhouse. Any business whose principal activity is the growing and wholesaling of plants or plant byproducts (not including fruits and vegetables) that are either grown or stored within an enclosed building or structure constructed chiefly of glass or glass-like material, cloth, or other transparent material. Such uses also often involve the seasonal display of plants and related products outdoors. Production greenhouses shall adhere to the following listed regulations:
(1)
A bufferyard with a minimum opacity of 0.60 shall be provided along all borders of outdoor display areas abutting residentially zoned property.
(2)
The outdoor display of items shall not be permitted in required setbacks, bufferyards or landscaped areas.
(3)
Storage and/or outdoor display areas shall be separated from any vehicular parking or circulation area by a minimum of ten feet. This separation shall be clearly distinguished by a physical feature or barrier such as a greenway, curb, fence or line of planters, or by a clearly marked paved area.
(4)
Signs, screening, enclosures, landscaping, or materials being displayed shall not interfere in any manner with either on-site or off-site traffic visibility, including potential traffic/traffic and traffic/pedestrian conflicts.
(5)
A minimum of one parking space per every 250 square feet of primary floor area shall be provided. In no event shall the display of items reduce or inhibit the use or number of parking stalls provided on the property below what is required by this section. If the number of provided parking stalls on the property is already less than the requirement, such display area shall not further reduce the number of parking stalls already present.
(d)
Indoor food production. Any business whose principal activity is the production and wholesaling of fruits and vegetables that are grown on-site within an enclosed building or structure. Such uses also often involve the seasonal display of plants and related products outdoors. Indoor food production also includes, but is not limited to, the farming of aquatic organisms (plants and animals) under controlled conditions, and which is located entirely within an enclosed building and utilizes recirculating (closed) system technology. Such operations may also incorporate aquaponics, which is the symbiotic cultivation of plants and aquatic organisms in a reticulating system. Indoor food production land uses shall adhere to the following listed regulations:
(1)
All outdoor storage areas shall be completely enclosed by any permitted combination of buildings, structures, walls, and/or fencing. Such walls and fencing shall be a minimum of eight feet in height and shall be designed to completely screen all stored materials or products from view of non-industrialized areas at an elevation of five feet above the grade of all adjacent properties and rights-of-way. Said walls or fencing shall be screened from residentially zoned property by a bufferyard with a minimum opacity of 0.80.
(2)
Storage and/or outdoor display areas shall be separated from any vehicular parking or circulation area by a minimum of ten feet. This separation shall be clearly distinguished by a physical feature or barrier such as a greenway, curb, fence or line of planters, or by a clearly marked paved area.
(3)
All outdoor storage areas shall be located no closer to a residentially zoned property than the required minimum setback for buildings on the subject property.
(4)
Materials being stored shall not interfere in any manner with either on-site or off-site traffic visibility, including potential vehicle/vehicle and vehicle/pedestrian conflicts.
(5)
Indoor aquaculture operations shall be connected to the municipal water and sanitary sewer system and all wastewater shall be discharged to the municipal sanitary sewer system.
(6)
Prior to the issuance of a conditional use permit, applicants wishing to establish indoor aquaculture operations shall prepare a report outlining the estimated average daily water usage and quantity of wastewater discharge. Such report shall be reviewed and approved by the public works director.
(7)
On-site processing of seafood is permitted provided the activity is conducted entirely within an enclosed building and no odors are detectable from the property line.
(8)
The on-site retail sale of seafood or vegetables shall be considered incidental indoor sales subject to the provisions of subsection 18-64(p); provided the area devoted to sales does not exceed 25 percent of the total area of the building(s) within which the operation is located. Retail areas that exceed 25 percent of the total area of the building(s) within which the operation is located shall be considered an indoor sales and service principal land use.
(9)
On-site composting shall be permitted; provided compost areas are fully screened on all four sides, and composting facility complies with all county, state and federal rules, regulations and permitting requirements.
(10)
The following specific parking requirements shall apply. In no event shall the storage of items reduce or inhibit the use or number of parking stalls provided on the property below what is required by this section. If the number of provided parking stalls on the property is already less than the requirement, such storage area shall not further reduce the number of parking stalls already present:
a.
Indoor aquaculture: One space for each 250 square feet of primary floor area.
b.
Wholesale greenhouses: Four spaces for every 1,000 square feet of primary floor area, plus two spaces per each employee on the largest work shift.
(e)
Communication tower. Any structure that is designed and constructed for the purpose of supporting one or more antennas for communication purposes such as cellular telephones or similar, including self-supporting lattice towers, guyed towers, or monopole towers. Height shall be measured from finished grade to the highest point on the tower or other structure, including the base pad. This definition includes the mobile service support structure, supports, and equipment buildings.
Communication towers shall adhere to performance standards and requirements included in section 18-217.
(f)
Large solar energy system. A large energy system that converts solar energy to usable thermal, mechanical, chemical, or electrical energy, where such solar energy system is typically a principal use of the land and designed primarily to generate energy for commercial sale off-site.
(1)
Rooftop, ground-mounted, and building-mounted large solar energy systems shall comply with the height limits and minimum required yards for principal structures.
(2)
Large solar system structures shall be finished in a rust-resistant, non-obtrusive finish and color that is nonreflective.
(3)
All electrical connections shall be located underground or within a building.
(4)
No large solar energy system shall be lighted unless required by the Federal Aviation Administration.
(5)
Clearing of natural vegetation for the purposes of installing a large solar energy system shall be limited to that which is necessary for the construction, operation and maintenance of the large solar energy system and as otherwise prescribed by applicable laws, regulations and ordinances.
(6)
All access doors or access ways and electrical equipment shall be lockable.
(7)
A large solar energy system shall require a building permit before installation. Building permit applications shall include the following information in addition to that required by the building code:
a.
A site plan drawn to scale showing the location of the proposed large solar energy system and per the requirements of section 18-245.
b.
Elevations of the site drawn to scale showing the height, design, and configuration of the large solar energy system and the heights of all existing structures, buildings and electrical lines in relation to property lines and their distance from the small solar energy system.
c.
A standard foundation design along with specifications for the soil conditions at the site.
d.
Specific information on the type, size, rated power output, performance, and safety characteristics of the system, including the name and address of the manufacturer, model and serial number.
e.
A description of emergency and normal shutdown procedures.
f.
A line drawing of the electrical components of the system in sufficient detail to establish that the installation conforms to all applicable electrical codes and this subsection.
g.
Evidence that the provider of electrical service to the property has been notified of the intent to install an interconnected electricity generator, except in cases where the system will not be connected to the electricity grid.
h.
Evidence of compliance with Federal Aviation Administration requirements.
(8)
The requirements of Wisconsin Statutes, including but not limited to, Wis. Stats. §§ 66.0401 and 66.0403, shall apply to all large solar energy systems.
(g)
Large wind energy system. A large wind energy system is one or more turbine which will be used primarily to generate power for off-site consumption, or any turbine with a rating in excess of 60 kWh. Large wind energy systems shall adhere to the following listed standards:
(1)
No large wind energy system shall be erected on any parcel less than ten acres in size.
(2)
The total height of a large wind turbine shall not exceed 175 feet.
(3)
Turbines shall be set back from the nearest property line and public road right-of-way not less than 1.1 times the total height.
(4)
No turbine shall be located within 1,000 feet of a property line of a platted subdivision, park, church or school.
(5)
A minimum of two parking spaces shall be provided for each employee on the largest work shift plus vehicle needed for ongoing maintenance.
(6)
Design standards.
a.
The design of the tower supporting each turbine shall be of a monopole or freestanding design without guy wires.
b.
The minimum height of the lowest extent of a turbine blade shall be 30 feet above the ground or 30 feet above the maximum permitted height of a principal structure within 100 feet from the tower.
c.
No tower shall have a climbing apparatus within 12 feet of the ground. All access doors or access ways to towers and electrical equipment shall be lockable.
d.
No turbine shall exceed 70 dBA as measured at the property line or 50 dBA as measured at the nearest adjacent residentially zoned property or neighboring inhabitable building.
e.
Each turbine shall be finished in a rust-resistant, non-obtrusive finish and color that is nonreflective.
f.
Turbines shall not be lighted unless required by the FAA.
g.
Signs of any kind or nature whatsoever are not permitted on any turbine.
h.
All electrical connections shall be underground and comply with all applicable codes; public utility requirements; PSC 119 "Rules for Interconnecting Distributed Generation Facilities;" PSC Forms 6027 and 6028 "Standard Distributed Generation Application Form;" and PSC Forms 6029 and 6030, "Distributed Generation Interconnection Agreement."
i.
Each turbine shall be sited in a manner that does not result in significant shadowing or flicker impacts. The applicant has the burden of proving that this effect does not have significant impact on neighboring or adjacent uses either through siting or mitigation.
j.
Clearing of natural vegetation shall be limited to that which is necessary for the construction, operation and maintenance of the wind energy system and its various components, and as otherwise prescribed by applicable laws, regulations and ordinances.
(7)
Conditional use permit application requirements. Conditional use applications for a large wind energy system shall include the following information in addition to that required under section 18-246:
a.
Site plan to scale showing the location of the proposed wind energy system and the locations of all existing buildings, structures, public rights-of-way and property lines along with distances.
b.
Elevations of the site to scale showing the height, design and configuration of the wind energy system and the height and distance to all existing structures, buildings and electrical lines in relation to property lines.
c.
Standard drawings and an engineering analysis of the systems tower including weight capacity.
d.
A standard foundation design along with soil conditions and specifications for the soil conditions at the site.
e.
Specific information on the type, size, rotor material, rated power output, performance, safety and noise characteristics of the system including the name and address of the manufacturer, model and serial number.
f.
Emergency and normal shutdown procedures.
g.
A line drawing of the electrical components of the system in sufficient detail to establish that the installation conforms to all applicable electrical codes.
h.
Evidence that the provider of electrical service of the property has been notified of the intent to install an interconnected electricity generator unless the system will not be connected to the electricity grid.
i.
Sound level analysis prepared by the wind turbine manufacturer or qualified engineer.
j.
Estimated cost to physically remove the turbine to comply with surety standards.
k.
Evidence of compliance with Federal Aviation Administration requirements.
l.
Liability insurance coverage in the amount of $1,000,000.00 of which the Village of Fontana shall be the certificate holder.
m.
Discontinuance of operation and abandonment.
1.
At such time that a large wind energy system is scheduled to be discontinued, the applicant shall notify the zoning administrator by certified U.S. Mail of the proposed date of discontinuance of operation.
2.
The owner shall physically remove turbine(s) within 120 days of discontinuance of operation. This period may be extended at the request of the owner and the discretion of the village board. Physically remove shall mean removal of the wind turbines, towers, and related above grade structures and restoration of the location of the wind energy system to its natural condition, except that any landscaping, grading or below grade foundation may remain in the after conditions.
3.
In the event that an applicant fails to give such notice, the system shall be considered abandoned or discontinued if the system is out of service for a continuous period of 120 days. After the 120 days of inoperability, the zoning administrator may issue a notice of abandonment to the owner of the wind energy system. The owner shall have the right to respond to the notice of abandonment within 30 days from notice receipt date. The zoning administrator shall withdraw such notice if the owner provides information that demonstrates the wind energy system has not been abandoned.
4.
If the owner fails to respond to the notice of abandonment or if after review by the zoning administrator it is determined that the wind energy system has been abandoned or discontinued, the owner of the wind energy system shall remove the wind turbine, tower and related above grade structures at the owner's expense within 90 days of receipt of the notice of abandonment. If the owner fails to physically remove the wind energy system after the notice of abandonment procedure, the village or their designee shall have the authority to enter the subject property and physically remove the wind energy system.
5.
The village shall have the authority to require the applicant to provide a form of surety (i.e., post a bond, letter of credit or establish an escrow account or by other means) at the time of construction to cover costs associated with the removal in the event the village must remove the large wind energy system. The applicant shall submit a fully inclusive estimate of the costs associated with the removal, prepared by a qualified engineer. The amount shall include a mechanism to accommodate the rate of inflation over 15 years.
(Ord. No. 090412-02, § 1, 9-4-2012; Ord. No. 020623-02, § 18, 2-7-2023)
(a)
Indoor storage and wholesaling. Land uses primarily oriented to the receiving, holding and shipping of packaged materials for a single business or group of businesses. With the exception of loading and parking facilities, such land uses are contained entirely within an enclosed building. Indoor storage and wholesaling land uses may include, but are not limited to, conventional warehouse facilities, long-term indoor storage facilities, and joint warehouse and storage facilities. Retail outlets associated with this use shall be considered accessory uses per subsection 18-64(p). Indoor storage and wholesaling uses shall adhere to the following standard:
(1)
A minimum of two parking spaces per each employee on the largest work shift, plus four spaces for every 1,000 square feet of primary floor area shall be provided.
(b)
Outdoor storage and wholesaling. Land uses are primarily oriented to the receiving, holding and shipping of packaged materials for a single business or group of businesses. Such a land use, in which any activity beyond loading and parking is located outdoors, is considered an outdoor storage and wholesaling land use. Outdoor storage and wholesaling land uses may include, but are not limited to, contractors' storage yards, equipment yards, lumber yards, coal yards, landscaping material yards, construction material yards, and shipping material yards. Such land uses do not include the storage of inoperable vehicles or equipment, or other materials typically associated with a junkyard or salvage yard (see subsection 18-62(d)). Outdoor storage and wholesaling land uses shall adhere to the following listed regulations:
(1)
All outdoor storage areas shall be completely enclosed by any permitted combination of buildings, structures, walls and fencing. Such walls and fencing shall be a minimum of eight feet in height and shall be designed to completely screen all stored materials from view from non-industrialized areas at an elevation of five feet above the grade of all adjacent properties and rights-of-way. Said walls or fencing shall be screened from residentially zoned property by a bufferyard with a minimum opacity of 0.80.
(2)
The storage of items shall not be permitted in required frontage landscaping areas or bufferyards.
(3)
Storage areas shall be separated from any vehicular parking or circulation area by a minimum of ten feet. This separation shall be clearly delimited by a physical separation such as a greenway, curb, fence, or line of planters, or by a clearly marked paved area.
(4)
Materials being stored shall not interfere in any manner with either on-site or off-site traffic visibility, including potential vehicle/vehicle and vehicle/pedestrian conflicts.
(5)
A minimum of two parking spaces per each employee on the largest work shift, plus four spaces for every 1,000 square feet of primary floor area shall be provided. In no event shall the storage of items reduce or inhibit the use or number of parking stalls provided on the property below what is required by this section. If the number of provided parking stalls on the property is already less than the requirement, such storage area shall not further reduce the number of parking stalls already present.
(c)
Personal storage facility. Land uses oriented to the indoor storage of items entirely within partitioned buildings having an individual access to each partitioned storage area (also known as "mini-warehouses"). Such storage areas may be available on either a condominium or rental basis. Personal storage facilities shall adhere to the following listed regulations:
(1)
A bufferyard with a minimum opacity of 0.80 shall be provided along all property borders abutting residentially zoned property; and
(2)
The facility shall be designed so as to minimize adverse visual impacts on nearby developments. The color, exterior materials, and orientation of proposed buildings and structures shall complement surrounding development; and
(3)
No electrical power shall be run to the storage facilities, except for exterior lighting; and
(4)
A minimum of two parking spaces per each employee on the largest work shift, plus four spaces for every 1,000 square feet of primary floor area shall be provided; and
(5)
An on-site caretaker's residence may be included with an approved conditional use permit.
(Ord. No. 090412-02, § 1, 9-4-2012; Ord. No. 100421-02, § 1, 10-4-2021)
(a)
Transit center or park and ride. A building, structure, and/or area designed and used for the purpose of loading, unloading, or transferring passengers or accommodating the movement of passengers from one mode of transportation to another. Examples include, but are not limited to, bus stations, train stations, and park and ride stations. Transit centers or park and ride facilities shall adhere to the following listed regulations:
(1)
A bufferyard with a minimum opacity of 1.0 shall be provided along all property borders abutting residentially zoned property.
(2)
All buildings, structures, outdoor storage and any other activity areas, except employee and passenger parking, shall be located a minimum of 100 feet from all lot lines abutting residentially zoned property.
(3)
Sufficient parking shall be provided to accommodate parking needs.
(b)
Distribution center. Facilities oriented to the short-term indoor storage and possible repackaging and reshipment of materials involving the activities and products of a single user. Retail outlets associated with this use shall be considered accessory uses per subsection 18-64(p). Distribution centers shall adhere to the following listed regulations:
(1)
A bufferyard with a minimum opacity of 1.00 shall be provided along all property borders abutting residentially zoned property.
(2)
All buildings, structures, outdoor storage areas, and any other activity areas shall be located a minimum of 100 feet from all lot lines abutting residentially zoned property.
(3)
In no instance shall activity areas be located within a required frontage landscaping or bufferyard areas.
(4)
A minimum of two parking spaces per each employee on the largest work shift, plus four spaces for every 1,000 square feet of primary floor area shall be provided.
(c)
Freight terminal. Land and buildings representing either end of one or more truck carrier line(s) which may have some or all of the following facilities: yards, docks, management offices, storage sheds, buildings and/or outdoor storage areas, freight stations, and truck maintenance and repair facilities, principally serving several or many businesses requiring trans-shipment. Freight terminals shall adhere to the following listed regulations:
(1)
A bufferyard with a minimum opacity of 1.00 shall be provided along all property borders abutting residentially zoned property.
(2)
All buildings, structures, outdoor storage areas, and any other activity areas shall be located a minimum of 100 feet from all lot lines abutting residentially zoned property.
(3)
In no instance shall activity areas be located within a required frontage landscaping or bufferyard areas.
(4)
A minimum of two parking spaces per each employee on the largest work shift, plus four spaces for every 1,000 square feet of primary floor area shall be provided.
(d)
Airport. Transportation facilities providing takeoff, landing, servicing, storage, and other services to any type of air transportation. The operation of any type of air vehicle (including ultralight aircraft, hang gliders, parasails, and related equipment, but excepting model aircraft) within the jurisdiction of this chapter shall occur only in conjunction with an approved airport. Airports shall adhere to the following listed regulations:
(1)
All buildings, structures, outdoor airplane or helicopter storage areas, and any other activity areas shall be located a minimum of 100 feet from all lot lines.
(2)
A bufferyard with a minimum opacity of 1.00 shall be provided along all borders of the property not otherwise completely screened from activity areas by buildings or structures.
(3)
All airports shall adhere to applicable regulations of the bureau of aeronautics.
(4)
A minimum of two parking spaces per each employee on the largest work shift, plus one space per every five passengers based on average daily ridership.
(e)
Off-site parking. Areas used for the temporary parking of vehicles which are fully registered, licensed and operable. Off-site parking may also include a structure for the control and regulation of the parking facility. Off-site parking facilities shall adhere to the following regulations:
(1)
A bufferyard with a minimum opacity of 0.80 shall be provided along all property borders abutting residentially zoned property.
(2)
Access and vehicular circulation shall be designed so as to discourage cut-through traffic.
(Ord. No. 090412-02, § 1, 9-4-2012)
(a)
Extraction. Land uses involving the removal of soil, clay, sand, gravel, rock, minerals, peat, or other material in excess of that required for approved on-site development or agricultural activities. Extraction land uses shall adhere to the following listed regulations:
(1)
Extraction operations shall receive approval from the county prior to action by the Village of Fontana, and shall comply with all county, state and federal regulations.
(2)
A bufferyard with a minimum opacity of 1.00 shall be provided along all borders of the property other than permanent open space.
(3)
All buildings, structures and activity areas shall be located a minimum of 300 feet from all lot lines.
(4)
Site plans shall include detailed site restoration plans, which shall include at minimum, detailed grading and re-vegetation plans, and a detailed written statement indicating the timetable for such restoration. A surety bond, in an amount equivalent to 110 percent of the costs determined to be associated with said restoration (as determined by a third party selected by the village), shall be filed with the village by the petitioner (subject to approval by the zoning administrator), and shall be held by the village for the purpose of ensuring that the site is restored to its proposed condition. (The requirement for said surety is waived for publicly-owned waste disposal facilities.)
(5)
A minimum of two parking spaces per each employee on the largest work shift shall be provided.
(b)
Composting. Land uses devoted to the collection, storage, processing, and/or disposal of vegetation. Composting land uses do not include individual residential composting systems. Composing land uses shall adhere to the following listed regulations:
(1)
Composting facilities shall comply with all county, state and federal regulations.
(2)
A bufferyard with a minimum opacity of 1.00 shall be provided along all borders of the property occupied by non-agricultural land uses.
(3)
All buildings, structures and activity areas shall be located a minimum of 100 feet from all lot lines.
(4)
No food scraps or other vermin-attracting materials shall be processed, stored or disposed of on-site.
(5)
Operations shall not involve the on-site holding, storage, or disposal of hazardous wastes as defined by state statutes in any manner.
(6)
A minimum of two parking spaces for each employee on the largest work shift shall be provided.
(c)
Recycling and waste disposal. Recycling facilities are those land uses devoted to the collection and distribution of recyclable materials. Recycling does not include the on-site storage of salvage materials. Waste disposal includes any facility and/or areas used for the disposal of solid wastes including those defined by Wis. Stats. § 289.01(33), but not including composting operations (see subsection 18-62(b), above). Recycling and waste disposal facilities shall adhere to county, state and federal regulations and adhere to the following listed regulations:
(1)
A bufferyard with a minimum opacity of 1.00 shall be provided along all borders of the property.
(2)
All buildings, structures and activity areas shall be located a minimum of 300 feet from all lot lines.
(3)
Operations shall not involve the on-site holding, storage, or disposal of hazardous materials as defined by state statutes in any manner.
(4)
Site plans shall include detailed site restoration plans, which shall include at minimum, detailed grading and revegetation plans, and a detailed written statement indicating the timetable for such restoration. A surety bond, in an amount equivalent to 110 percent of the costs determined to be associated with said restoration (as determined by a third party selected by the village), shall be filed with the village by the petitioner (subject to approval by the village administrator), and shall be held by the village for the purpose of ensuring that the site is restored to its proposed condition. (The requirement for said surety is waived for recycling and waste disposal facilities owned by public agencies.)
(5)
A minimum of two parking spaces per each employee on the largest work shift, plus four spaces for every 1,000 square feet of primary floor area shall be provided.
(d)
Salvage or junkyard. Any land or structure used for a salvaging operation including, but not limited to, the above ground, outdoor storage and/or sale of waste paper, rags, scrap metal, and any other discarded materials intended for sale or recycling; and/or the collection, dismantlement, storage, or salvage of two or more unlicensed and/or inoperable vehicles. Recycling facilities involving on-site outdoor storage of salvage materials are included in this land use. Salvage or junkyard land uses shall adhere to the following listed regulations:
(1)
A bufferyard with a minimum opacity of 1.00 shall be provided along all property borders abutting residentially zoned property.
(2)
In no instance shall activity areas be located within a required frontage landscaping or bufferyard areas.
(3)
All buildings, structures, outdoor storage areas, and any other activity areas shall be located a minimum of 50 feet from all roads and 100 feet from all lot lines.
(4)
Facility shall not involve the storage, handling, or collection of hazardous materials as defined by state statutes.
(5)
A minimum of one parking space for every 20,000 square feet of primary storage area shall be provided, plus two spaces for each employee on the largest work shift.
(Ord. No. 090412-02, § 1, 9-4-2012)
(a)
Cultivation. Operations primarily oriented to the on-site, outdoor raising of plants for commercial purposes. This land use includes the raising of trees as a crop to be replaced with more trees after harvesting, such as in nursery or Christmas tree operations. The raising of plants for consumption by farm animals is considered cultivation if said plants are consumed by animals which are located off-site. Cultivation land uses shall adhere to the following listed regulations:
(1)
On buildable lots, cultivation areas shall not exceed 20 percent of the lot's area.
(2)
Cultivation areas shall not be located within the required front yard or street yard of any buildable or developed lot.
(3)
Re-establishment or new establishment of cultivation shall be subject to the following additional requirements:
a.
Cultivation may only be re-established within the AH-35 District.
b.
Once discontinued for a period of 12 months, cultivation shall not be re-established except with the granting of a conditional use permit, and shall be limited to hay crops.
c.
The applicant shall provide a site plan that clearly depicts the area proposed for cultivation and all structures and land uses on all adjoining properties. A current air photo may be used as a base map for this site plan. All distances from the area to be cultivated to all property lines and structures on adjoining properties shall be measured and labeled on said site plan.
d.
The applicant shall provide a written plan of operation describing the proposed general timing and frequency of any and all farming activities involving mechanized equipment. The plan of operation shall list the times of operation of mechanized equipment, including earliest and latest times during the day and likely months of mechanized activity. Said plan of operation shall also list any and all chemicals to be used.
(4)
A minimum of two parking spaces per employee on the largest work shift shall be provided. (Note: Customer parking shall be provided based on land use; agricultural land uses are hereby made exempt from the surfacing requirements of section 18-213.)
(b)
Husbandry. Operations primarily oriented to the on-site raising and/or use of animals at an intensity of less than one animal unit (defined in section 18-13) per acre. This includes, but is not limited to, horses, cattle, sheep, goats, llamas (and related species), deer, antelope, swine, foul (including chickens, turkeys, ducks, geese, peacocks, guinea hens, game birds), aquatic species (including fish, shellfish, crustaceans, echinoderms, plants, and algae), and any animals typically hunted or trapped. This excludes animals typically kept as pets and commonly available at commercial pet stores (e.g., domestic dogs and cats, fish, small rodents, reptiles, amphibians, tropical/exotic birds). Apiaries are also considered husbandry land uses. Husbandry land uses shall adhere to the following listed regulations:
(1)
Any building housing animals shall be located a minimum of 300 feet from any residentially zoned property, and 100 feet from all other lot lines.
(2)
All outdoor animal containments (pastures, pens and similar areas) shall be located a minimum of ten feet from any residentially zoned property.
(3)
Husbandry uses, once discontinued for a period of 12 months, shall not be re-established or except with the granting of a conditional use permit, and shall only be permitted in the AH-35 District.
(4)
A minimum of two parking spaces per employee on the largest work shift shall be provided. (Note: Agricultural land uses are hereby made exempt from the surfacing requirements of section 18-213.)
(c)
On-site agricultural retail. On-site agricultural retail includes the sale of agricultural products grown exclusively on the site. The sale of products grown or otherwise produced off-site shall not be permitted within on-site agricultural retail operations; such activity constitutes indoor sales (see subsection 18-56(d)). Packaging and equipment used to store, display, package, or carry products for the convenience of the operation or its customers (such as egg cartons, baskets, containers, and bags) shall be produced off-site. On-site agricultural retail land uses shall adhere to the following listed regulations:
(1)
No structure or group of structures shall exceed 500 square feet in gross floor area.
(2)
No structure shall exceed 12 feet in height.
(3)
All structures shall meet all required setbacks for nonresidential land uses.
(4)
Said structure and fencing shall be located a minimum of 300 feet from any residentially zoned property.
(5)
Signage shall be limited to one on-site sign which shall not exceed 30 square feet in area.
(6)
Such land use shall be served by no more than one driveway.
(7)
The sale of products which are grown or otherwise produced on nonadjacent property under the same ownership, or on property under different ownership, shall be prohibited.
(8)
On-site agricultural retail uses, once discontinued for a period of 12 months, shall not be re-established except with the granting of a conditional use permit, and shall only be permitted in the AH-35 District.
(9)
A minimum of one parking space shall be provided for every 250 square feet of product display area. (Note: Agricultural land uses are hereby made exempt from the surfacing requirements of section 18-213.)
(d)
Selective cutting. Any operation associated with the one-time, continuing, or cumulative clearing, cutting, harvesting, or other destruction of trees (including by fire) where the extent of such activity is limited to an area (or combined areas) of less than or equal to 30 percent of the woodlands on the property (or up to 100 percent for developments approved prior to the effective date of this chapter). Selective cutting shall be limited to areas which are designated for such on recorded plats or certified survey maps. The destruction of trees in an area in excess of this amount of the woodlands on the property shall be considered clear cutting, (see subsection (e), below).
(e)
Reserved.
(f)
Intensive agriculture. Operations primarily oriented to the on-site raising and/or use of animals at an intensity equal to or exceeding one animal unit (as defined in section 18-13) per acre and/or agricultural activities requiring large investments in structures. Intensive agricultural land uses may include, but are not limited to, feed lots, hog farms, poultry operations, aquaculture, and certain other operations meeting this criterion. Intensive agricultural land uses shall adhere to the following listed regulations:
(1)
Intensive agricultural uses shall not be located in or adjacent to an existing or platted residential subdivision.
(2)
A bufferyard with a minimum opacity of 1.00 shall be provided along all sides of the subject property.
(3)
All buildings, structures, outdoor storage areas, and outdoor animal containments (pastures, pens and similar areas) shall be located a minimum of 300 feet from all residentially zoned property and 100 feet from all other lot lines.
(4)
Intensive agricultural uses shall be located in an area which is planned to remain commercially viable for agricultural land uses.
(5)
Once discontinued for a period of 12 months, intensive agriculture uses shall not be re-established except with the granting of a conditional use permit, and shall only be permitted in the AH-35 District.
(6)
A minimum of two parking spaces per employee on the largest work shift shall be provided. (Notes: Customer parking shall be provided based on land use; agricultural land uses are hereby made exempt from the surfacing requirements of section 18-213.)
(g)
Agricultural service. Operations pertaining to the sale, handling, transport, packaging, storage, or disposal of agricultural equipment, products, by-products, or materials primarily used or produced by agricultural operations. Agricultural service land uses may include, but are not limited to, agricultural implement sales, storage, or repair operations; feed and seed stores; agricultural chemical dealers and/or storage facilities; animal feed storage facilities; commercial dairies; food processing facilities; canning and other packaging facilities; and agricultural waste disposal facilities (except composting uses, see subsection 18-62(c)). Agricultural service land uses shall adhere to the following listed regulations:
(1)
Agricultural service uses shall not be located in, or adjacent to, an existing or platted residential subdivision.
(2)
All buildings, structures, outdoor storage areas, and outdoor animal containments (pastures, pens and similar areas) shall be located a minimum of 100 feet from all lot lines.
(3)
If within the AH-35 District, agricultural service uses shall be located in an area which is planned to remain commercially viable for agricultural land uses.
(4)
Once discontinued for a period of 12 months, agricultural service uses shall not be re-established except with the granting of a conditional use permit, and shall only be permitted in the AH-35 or RP Districts.
(5)
A minimum of two parking spaces per employee on the largest work shift shall be provided. (Notes: Customer parking shall be provided based on land use; agricultural land uses are hereby made exempt from the surfacing requirements of section 18-213.)
(h)
Community garden. Garden areas divided into one or more plots to be cultivated by more than one operator or member. These areas may be on public or private lands. Community gardens shall adhere to the following listed regulations:
(1)
The on-site sales of plants grown the on-site is prohibited.
(2)
All activity areas and structures shall comply with the required setbacks and height regulations for principal structures within the zoning district.
(3)
A site plan shall be submitted to the zoning administrator for approval. Said site plan shall list the property owner, established sponsoring organization and garden manager, and demonstrate consideration for and indicate locations of structures, materials storage, equipment storage, access for deliveries and pickups, water availability, shaded rest area, and availability of public parking.
(4)
The following structures are permitted in community gardens: tool sheds, shade pavilions, barns, restroom facilities with composting toilets, and planting preparation houses, benches, bike racks, raised/accessible planting beds, compost bins, picnic tables, seasonal farm stands, fences, garden art, rain barrel systems, beehives, and children's play areas.
(5)
Signs shall be limited to identification, information, and directional signs, including sponsorship information which is clearly secondary to other permitted information on any particular sign and shall not exceed a total aggregate area of 48 square feet.
(i)
Market garden. An area for cultivation divided into one or more plots to be cultivated by more than one operator or member where the on-site sales of crops grown on-site permitted. These areas may be on public or private lands. Market gardens shall adhere to the following listed regulations:
(1)
All activity areas and structures shall comply with the required setbacks and height regulations for principal structures within the zoning district.
(2)
A site plan shall be submitted to the zoning administrator for approval. Said site plan shall list the property owner, established sponsoring organization, and garden manager, and demonstrate consideration for and indicate locations of structures, materials storage, equipment storage, access for deliveries and pickups, water availability, shaded rest area, and availability of public parking.
(3)
The following structures are permitted within market gardens: tool sheds, shade pavilions, barns, restroom facilities with composting toilets, and planting preparation houses, benches, bike racks, raised/accessible planting beds, compost bins, picnic tables, seasonal farm stands, fences, garden art, rain barrel systems, beehives, and children's play areas.
(4)
Seasonal farm stands shall be removed from the premises or stored inside a building on the premises during that time of the year when the garden is not open for public use.
(5)
Signs shall be limited to identification, information and directional signs, including sponsorship information which is clearly secondary to other permitted information on any particular sign and shall not exceed a total aggregate area of 48 square feet.
(j)
Farm family business wedding barn. Farm family business wedding barn in the A-2, ETZ Agricultural Land (A-2, ETZ) District is a use which is accessory to an agricultural use consisting of a farm family business wedding barn. A farm family business may be permitted as a conditional use for farm owners if limited to existing farm residence or farm structures not dedicated to agricultural uses. No more than two persons who are not members of the resident farm family may be employed in the farm family business and that does not impair or limit the current or future agricultural use of the farm or of other protected farmland. Farm family business events shall be limited to 12 per year. Farm family business wedding barn is subject to the following conditions:
(1)
A 200-foot open buffer shall be provided on all sides from the edge of the conditional use permit area not abutting a public roadway to any neighboring properties which are zoned residential or which contain a residential dwelling unit. Event activities are not permitted within this buffer area. Where possible, agricultural crops or suitable landscaping shall remain or be grown in the buffer area, to maintain the rural/agricultural character of the site. This buffer requirement may be increased, decreased, or waived at the discretion of the plan commission.
(2)
Buffer plantings shall be provided along any edge of the conditional use permit area where there is an abutting residence within 500 feet of the conditional use permit area to screen views, lights, and noise from the operation. Plantings shall be specified in the conditional use permit.
(3)
The increase in traffic generated by the venue shall not create a public nuisance as defined in chapter 50 to nearby residents by way of traffic, noise, or significant increases in parking on public ways.
(4)
Parking may be either gravel or paved as determined by the plan commission. Overflow parking on grass or hay areas is permissible.
(5)
Parking areas shall be contained within the designated conditional use permit area. Parking provided shall be equal to one space per three guests proposed plus one space per employee on the largest shift. The village board may approve a portion of the minimum required parking to be provided on grassy or other pervious surfaces as overflow parking. Any proposed overflow parking shall be shown on the submitted site plan. Maximum guest capacity shall be provided at the time of application.
(6)
Signage and site lighting shall comply with zoning ordinances. Lighting shall be the minimum necessary to provide for site safety and comply with ordinance standards. Lighting shall be directed away from adjacent properties.
(7)
The use shall comply with the latest adopted International Building Code.
(8)
No smoking, lit candles or open flames shall be permitted within the wedding barn structure(s) or within 100 feet of the wedding barn structure(s).
(9)
The wedding barn structure shall have smoke detectors and portable fire extinguishers in the structure at all times that the wedding barn is in use.
(10)
Amplified music is permitted only within the venue as part of the conditional use permit. Outdoor amplified music may not exceed 100 db at the property line and shall end by 10:00 p.m.
(11)
In addition to existing conditional use permit applications on file with the village, the following information shall be provided at the time of application:
a.
Size of venue and guest capacity including a floor plan of the venue and other structures to be utilized, provision of restroom facilities, and location of refuse/recycling receptacles and disposal method.
b.
Signage and lighting plan.
c.
Hours of operations.
d.
Anticipated number of events per year.
e.
Anticipated music at the venue and type of sound amplification.
f.
Any other documents required by the zoning administrator.
(Ord. No. 090412-02, § 1, 9-4-2012; Ord. No. 110121-02, § 18, 11-1-2021; Ord. No. 061223-01, § 2, 6-12-2023)
(a)
Home occupation. Economic activities performed within a single-family detached residence, such as personal and professional services and handicrafts. Home occupations are intended to provide a means to accommodate a small home-based family or professional business without the necessity of a rezoning from a residential to a business district. Home occupations are limited to service-oriented businesses and businesses that do not generate customer visits. Home occupations shall adhere to the following listed regulations:
(1)
Home occupations shall adhere to the accessory land use requirements in subsection 18-52(2).
(2)
The home occupation must be clearly incidental and secondary to the principal use as a residence.
(3)
The home occupation may not constitute more than 25 percent of the floor area of the principal building.
(4)
The home occupation shall be conducted only within the enclosed area of the dwelling unit or attached garage.
(5)
Any and all employees shall be a resident of the dwelling unit.
(6)
The residential character of the building and premises shall be maintained so that with the exception of permitted signage, there is no outdoor evidence of any home occupation activities.
(7)
The applicant shall obtain the property owner's written permission to establish a home occupation.
(8)
Such use shall not include the operation of any machinery, tools, or other appliances in a manner which would create noise or other nuisance factors in excess of those typical to residential uses.
(9)
Only one sign may be used to indicate the type of occupation or business. Such sign shall not be illuminated and shall not exceed three square feet.
(10)
No storage or display of materials, goods, supplies, or equipment related to the operation of the home occupation shall be visible outside any structure located on the premises.
(11)
Home occupations shall not involve the use of commercial vehicles for more than occasional delivery of materials to or from the premises.
(12)
Automated production and/or mass manufacturing of products on the premises is prohibited. Hand-crafted and/or assembled custom products, such as jewelry, ceramics, furniture, clothing and accessories, and fishing lures are permitted.
(13)
Any off-street parking area shall be limited to that which is compatible with the residential character of the neighborhood and shall conform to the standards set forth in section 18-213.
(b)
Expanded home occupation. Expanded home occupations are intended to provide greater flexibility than home occupations in terms of number of employees, customer visits, and allowable occupations. For example, retail trade may be conducted in an expanded home occupation, whereas home occupations are limited to service-oriented businesses and businesses that do not generate customer visits. Expanded home occupations shall adhere to the following listed regulations:
(1)
Expanded home occupations shall adhere to the accessory land use requirements in subsection 18-52(2).
(2)
Expanded home occupations shall adhere to all regulations listed under subsection 18-64(a), except subsection 18-64(a)(5).
(c)
Family day care home (4—8 children). Occupied residences in which a qualified person or persons provide childcare for four to eight children. The care of less than four children is not subject to the regulations of this chapter. (Wis. Stats. § 66.1017(1)(a)). Family day care homes shall adhere to the accessory land use requirements in subsection 18-52(2).
(d)
Intermediate day care home (9—15 children). Occupied residences in which a qualified person or persons provide childcare for nine to 15 children. (Wis. Stats. § 48.65). Intermediate day care homes shall adhere to the accessory land use requirements in subsection 18-52(2).
(e)
In-home suite. The area within a dwelling unit that may contain separate kitchen, dining, bathroom, laundry, living, sleeping, and recreation areas, including exterior porches, patios and decks. In addition to the required internal physical connection, separate outdoor access or separate access to the garage may be provided. In-home suites shall adhere to the following listed regulations:
(1)
In-home suites shall adhere to the accessory land use requirements in subsection 18-52(2).
(2)
In-home suites may not be occupied by a nonfamily member.
(3)
In-home suites should be considered and regulated as part of a single-family dwelling unit.
(4)
External stairs serving as the primary access to the in-home suite are prohibited.
(5)
The principal dwelling unit and the in-home suite shall together appear as a single-family dwelling.
(6)
A separate walled garage area or driveway is not permitted.
(7)
A separate address for the in-home suite is not permitted.
(8)
A separate utility connection or meters are not permitted.
(9)
A physical all-weather connection between the main living area and the in-home suite must be present. This required connection may not occur through an attic, basement, garage, porch, or other nonliving area. A door may be used to separate the in-home suite from the principal dwelling, but may not be locking, except that a locking door may be used for the bedroom and bathroom doors of the in-home suite.
(10)
When an application is submitted for a building permit to accommodate what is explicitly listed as, or could possibly serve as, an in-home suite, the building plan shall be marked as "not a separate dwelling unit or apartment," and a signed letter from the applicant stating agreement with this condition shall be filed.
(f)
Accessory dwelling unit. A dwelling unit established in conjunction with and clearly subordinate to the principle dwelling unit. Accessory dwellings may be located on the same lot as a single-family dwelling unit, either in the same building as the single-family dwelling unit or in a detached accessory building. Accessory dwelling units may also be permitted on the ground floor of a building used for an office, commercial or institutional land use, but may not be within the first 24 feet of the ground floor measured from the front of the building. More than one dwelling unit within a mixed-use structure shall be treated as a mixed-use residential land use. Accessory dwelling units shall adhere to the following listed regulations:
(1)
Accessory dwelling units shall adhere to the accessory land use requirements in subsection 18-52(2).
(2)
Only one accessory dwelling unit shall be permitted on any one site, if permitted by the zoning district of the subject site.
(3)
Accessory dwellings shall not exceed 50 percent of the principal dwelling's floor area, up to a maximum size of 1,500 square feet, whichever is smaller in size.
(4)
The principal building must be owner-occupied.
(5)
The accessory dwelling unit shall not be sold separately from the principal dwelling or the remainder of the property.
(6)
The accessory dwelling unit may be occupied by family or nonfamily members.
(7)
Additional entrances shall not be added to the front elevation of an existing building, but may be added to side or rear or street-side elevations.
(8)
Entryways within a rear or side yard shall be connected to a street frontage by a paved walkway or driveway. On corner lots, primary entrances to accessory dwelling units shall be placed on the facade parallel to the side street.
(9)
The appearance or character of the principal building must not be significantly altered so that its appearance is no longer that of a single-family dwelling; however, a distinct address and/or distinct utility meter is permitted.
(10)
Accessory dwelling units shall not be located in a boat house or in a structure less than 75 feet from the ordinary high-water mark.
(g)
Farm residence. A single-family detached dwelling unit located on the same property as any of the principal agricultural land uses listed under section 18-63. Farm residences shall adhere to the accessory land use requirements in subsection 18-52(6).
(h)
Migrant employee housing. Any facility subject to the regulation of Wis. Stats. § 103.90(3)(a). Migrant employee housing shall adhere to the following listed regulations:
(1)
Migrant employee housing shall adhere to the accessory land use requirements in subsection 18-52(2).
(2)
A bufferyard with a minimum opacity of 0.60 shall be provided along all property lines adjacent to all properties not zoned AH-35.
(3)
Migrant employee housing shall be an accessory use to an active principal land use and under the same ownership.
(i)
Residential garage or shed. Structures primarily used to shelter parked passenger vehicles. A residential shed is a structure used primarily to store residential maintenance equipment of the subject property. Residential garages and sheds shall adhere to the following listed regulations:
(1)
Residential garages and sheds shall adhere to the accessory land use requirements in subsection 18-52(2).
(2)
The total number of structures shall be limited to one detached garage and one other like-use accessory structure, except condominium lots, where up to one shed or garage may be permitted for each dwelling unit.
(3)
The total of all detached garages and sheds shall not exceed a combined total floor area greater than 60 percent of the floor area of the principal building on the lot.
(j)
Residential recreational facility. All active outdoor recreational facilities located on a private residential lot which are not otherwise addressed in this article. Common examples include swing sets, basketball courts, tennis courts, swimming pools, and recreation-type equipment. Residential recreational facilities shall adhere to the following listed regulations:
(1)
Residential recreational facility shall adhere to the accessory land use requirements in subsection 18-52(2).
(2)
All private residential recreation facilities and their attendant structures shall comply with the bulk requirements for accessory structures.
(3)
Materials and lighting at said property line are to be equal to or less than 0.5 foot candles.
(4)
Swimming pools shall be regulated by the performance standards provided in section 18-216.
(5)
Play platforms shall not exceed a platform height of eight feet and shall be setback twice their elevation from any property line. See also subsection 18-177(b)(4).
(k)
Residential kennel or stable. A residential kennel is the housing of any combination of more than three dogs and/or cats over six months of age within a residential dwelling unit. A residential stable is an accessory structure that is designed for the keeping of equines for the private use of the occupants of the principal dwelling and their guests, but in no event for hire. Residential kennels and stables shall adhere to the following listed regulations:
(1)
Residential kennels and stables shall adhere to the accessory land use requirements in subsection 18-52(2).
(2)
Outdoor containments for animals shall be located a minimum of 25 feet from any residentially zoned property.
(3)
A minimum lot area of 175,000 square feet (approx. four acres) is required for a private residential stable.
(4)
A maximum of one horse per two acres of fully enclosed (by fencing and/or structures) area is permitted.
(5)
The minimum permitted size of horse or similar animal stall shall be 100 square feet.
(l)
On-site parking. On-site parking lots are any areas located on the same site as the principal land use which are used for the temporary parking of vehicles which are fully registered, licensed, and operable. On-site parking areas shall adhere to the following listed regulations:
(1)
On-site parking areas shall adhere to the accessory land use requirements in subsection 18-52(2).
(2)
Access and vehicular circulation shall be designed to discourage cut-through traffic.
(m)
Company cafeteria. A food service operation which provides food only to company employees and their guests. Company cafeteria shall adhere to the following listed regulations:
(1)
Company cafeterias shall adhere to the accessory land use requirements in subsection 18-52(2).
(2)
Company cafeterias shall meet state food service requirements.
(3)
Company cafeterias shall be located on the same property as a principal land use engaged in an operation other than food service.
(n)
Company on-site recreation. Any active or passive recreational facility located on the same site as a principal land use, and which is reserved solely for the use of company employees and their guests. Company on-site recreational facilities shall adhere to the following listed regulations:
(1)
Company on-site recreation areas shall adhere to the accessory land use requirements in subsection 18-52(2).
(2)
All structures and actively used outdoor areas shall be located a minimum of 50 feet from any residentially zoned property.
(3)
A bufferyard with a minimum opacity of 0.60 shall be provided for any outdoor recreation facilities using night lighting and/or adjoining a residentially zoned property.
(4)
Facilities using night lighting shall require a conditional use permit.
(o)
Incidental outdoor display. The sales and display of merchandise or equipment outside of an enclosed building and is incidental to a principal commercial or industrial land use. Incidental outdoor display land uses shall adhere to the following listed regulations:
(1)
Incidental outdoor display land uses shall adhere to the accessory land use requirements in subsection 18-52(2).
(2)
Incidental outdoor display land uses shall comply with all regulations of subsection 18-56(e).
(3)
The display area shall not exceed 25 percent of gross floor area of principal building on the site.
(p)
Incidental indoor sales. Any retail sales activity conducted exclusively indoors which is incidental to a principal land use such as warehousing, wholesaling, or any light industrial land use on the same site. Incidental indoor sales shall adhere to the following listed regulations:
(1)
Incidental indoor sales shall adhere to the accessory land use requirements in subsection 18-52(2).
(2)
The total area devoted to sales activity shall not exceed 25 percent of the total area of the buildings on the property. Areas devoted to artisan studio uses such as custom ceramics, glass, wood, paper, fabric, and similar crafts may exceed 5,000 square feet with the granting of a conditional use permit for such use.
(3)
Shall provide restroom facilities directly accessible from retail sales area.
(4)
The retail sales area shall be physically separated by a wall from all other activity areas.
(5)
Adequate parking shall be provided for customers in addition to that required for the principal land use.
(q)
Incidental light industrial. Any light industrial activity conducted exclusively indoors which is incidental to a principal land use, such as indoor sales or service, on the same site. Incidental light industrial shall adhere to the following listed regulations:
(1)
Incidental light industrial uses shall adhere to the accessory land use requirements in subsection 18-52(2).
(2)
The total area devoted to light industrial activity shall not exceed 15 percent of the total area of the buildings on the property, or 5,000 square feet, whichever is less.
(3)
The production area shall be physically separated by a wall from other activity areas and shall be soundproofed to the level required by section 18-227 for all adjacent properties.
(4)
Adequate parking shall be provided for customers in addition to that required for the principal land use.
(r)
Stormwater facilities. These include all improvements including, but not limited to, swales, ditches, culverts, drains, tiles, gutters, levees, basins, detention or retention facilities, impoundments, and dams intended to effect the direction, rate and/or volume of stormwater runoff, snow melt, and/or channelized flows across, within, and/or away from a site. Stormwater facilities shall adhere to the following listed regulations:
(1)
Stormwater facilities shall adhere to the accessory land use requirements in subsection 18-52(2).
(2)
Stormwater facilities shall adhere to applicable state regulations and regulations in the Village of Fontana Municipal Code.
(s)
Exterior communications device. This land use includes any towers and antennas, such as satellite dish and television antennas, used for communication reception including those use for reception by an amateur radio operator licensed by the Federal Communications Commission (FCC). Exterior communications devices shall adhere to the following listed regulations:
(1)
Exterior communications devices shall adhere to the accessory land use requirements in subsection 18-52(2).
(2)
Regulations specific to ham radio/shore wave antennas and towers:
a.
The regulations under this subject apply only to antennas used for communication reception by an amateur radio operator licensed by the FCC.
b.
Installations may not be located in a front or street side yard.
c.
Installations of 45 feet or less in height shall meet the setback requirements for any accessory structure.
d.
Installations with heights between 45 feet and 75 feet shall meet the setback requirements for a principal structure and will require a prior written notice to the abutting property owners.
e.
Installations of 75 feet or higher shall have a setback of at least one-third of the total height of the structure.
f.
Installations of 75 feet or higher or those that do not meet all of the requirements for installations less than 75 feet shall require a conditional use permit.
g.
With the exception of the requirements listed above, all installations of ham/short-wave antennas and towers shall comply with the performance standards of this chapter.
h.
All installations shall require the proper building permits.
(3)
Regulations pertaining to all other exterior communications devices:
a.
Except for television antennas, ham radio antennas, and satellite dishes 18 inches or smaller, exterior communication devices shall not be visible from a public street.
b.
Devices must be sited an equal or greater number of feet from any property lines as their maximum height and shall not be located in a required setback.
c.
The applicant must demonstrate that all reasonable mechanism have been used to mitigate safety hazards and visual inputs of the device.
(t)
Septic systems. Any state-enabled, county-approved septic disposal system. Septic systems shall comply with the applicable state regulations and regulations in the Village of Fontana Municipal Code related to the protection of natural resources. Septic systems shall adhere to the following listed regulations:
(1)
Septic systems shall adhere to the accessory land use requirements in subsection 18-52(2).
(2)
The minimum lot size for installation of a septic system is one-half acre (21,780 square feet).
(u)
Small solar energy system. An energy system that converts solar energy to usable thermal, mechanical, chemical, or electrical energy, where such solar energy system is accessory to the principal use of the land (e.g., solar panels providing energy for a dwelling on the same lot), and does not exceed a rated capacity of 60 kilowatts. Small solar energy systems are permitted uses in all zoning districts. Note that solar energy systems exceeding 60 kilowatts are listed under large solar energy systems. Small solar energy systems shall adhere to the following listed regulations:
(1)
Small solar energy systems shall adhere to the accessory land use requirements in subsection 18-52(2).
(2)
Rooftop, ground-mounted, and building-mounted solar energy systems shall comply with the height limits and minimum required yards for principal structures.
(3)
The requirements of Wis. Stats. §§ 66.0401 and 66.0403, shall apply to all solar energy systems.
(v)
Small wind energy system. An energy system that converts wind energy to usable thermal, mechanical, chemical, or electrical energy, where such wind energy system is accessory to the principal use of the lot (such as a wind turbine system providing energy for a dwelling on the same lot), primarily supplies energy to such principal use, and does not exceed a rated capacity of 60 kilowatts. Note that wind energy systems exceeding 60 kilowatts are listed under large wind energy systems (see subsection 18-59(g). Small wind energy systems shall adhere to the following listed regulations:
(1)
Small wind energy systems shall adhere to the accessory land use requirements in subsection 18-52(2).
(2)
Small wind energy systems shall meet all detached accessory building setbacks in the applicable zoning district. Except by conditional use permit, no small wind energy system shall be located in any front yard or side yard having frontage on a public street and shall be set back from the nearest property line, public road right-of-way, nearest inhabited building other than the principal inhabitable structure served by the small wind energy system and any public communication and electrical line by a distance of not less than 1.1 times the total height of the small wind energy system.
(3)
No small wind energy system shall be sited or operated in a manner that causes permanent or material interference with television or other communication signals.
(4)
The total height of all rooftop, ground-mounted, and building-mounted small wind energy systems located on lots up to two acres in area shall not exceed 80 feet. For small wind energy systems located on lots over two acres in area, the total height shall not exceed 170 feet. The minimum height of the lowest extent of a turbine blade shall be 30 feet above the ground or 30 feet above the maximum allowable height of any structure or obstacle within 100 feet of the small wind energy system, whichever is greater.
(5)
Sound emanating from a small wind energy system shall not exceed 75 dBA as measured at the property line, or 50 dBA as measured at the nearest neighboring dwelling, not including the principal building(s) served by the small wind energy system.
(6)
Small wind energy system structures shall be finished in a rust-resistant, non-obtrusive finish and color that is nonreflective. The freestanding small wind energy system shall be designed without use of guy wires. All electrical connections shall be located underground or within a building. No small wind or system shall be lighted unless required by the Federal Aviation Administration. Clearing of natural vegetation for the purposes of installing a small wind system shall be limited to that which is necessary for the construction, operation and maintenance of the small wind energy system and as otherwise prescribed by applicable laws, regulations and ordinances. No signs of any kind or nature whatsoever shall be permitted on any small wind energy system, except that the manufacturer's identification and appropriate warning signs are allowed.
(7)
All access doors or access ways to any required towers and electrical equipment shall be lockable. Every small wind energy system shall be equipped with both manual and automatic overspeed controls.
(8)
A small wind energy system shall require a building permit before installation, which may be included with the general building permit for the principal structure. Building permit applications shall include the following information in addition to that required by the building code:
a.
A site plan drawn to scale showing the location of the proposed small wind energy system and the locations of all existing buildings, structures, public rights-of-way, and property lines. All distances shall be measured and labeled on the site plan.
b.
Elevations of the site drawn to scale showing the height, design, and configuration of the small solar or wind energy system and the heights of all existing structures, buildings and electrical lines in relation to property lines and their distance from the small wind or solar energy system.
c.
Standard drawings and an engineering analysis of any wind energy system tower, including load-bearing and wind-bearing capacity.
d.
A standard foundation design along with specifications for the soil conditions at the site.
e.
Specific information on the type, size, rotor material, rated power output, performance, safety, and noise characteristics of the system including the name and address of the manufacturer, model and serial number.
f.
A description of emergency and normal shutdown procedures.
g.
A line drawing of the electrical components of the system in sufficient detail to establish that the installation conforms to all applicable electrical codes and this subsection.
h.
Evidence that the provider of electrical service to the property has been notified of the intent to install an interconnected electricity generator, except in cases where the system will not be connected to the electricity grid.
i.
A sound level analysis prepared by the wind turbine manufacturer or other qualified engineer.
j.
Evidence of compliance with or non-applicability with Federal Aviation Administration requirements.
(w)
Incidental recreational equipment storage. This accessory land use includes the outdoor storage of recreational vehicles or equipment, including boats, boats with trailers, motorhomes, pop-up campers, fifth-wheel trailers, large utility trailers, race cars, canoes and kayaks. Incidental recreational equipment storage uses shall adhere to the following listed regulations:
(1)
Incidental recreational equipment storage shall adhere to the accessory land use requirements in subsection 18-52(2).
(2)
No more than two recreational vehicles may be stored outside of a fully enclosed structure.
(3)
No recreational vehicle may be parked or stored in a front or side yard on a regular basis, except upon nonrequired parking spaces on a pad or expanded driveway.
(4)
A recreational vehicle shall be located not closer than five feet to a side or rear lot line, except with the granting of a conditional use permit.
(5)
The recreational vehicle shall be maintained and in good condition and safe for effective performance for the function in which it was intended. The exterior of the vehicle shall be intact.
(6)
Recreational vehicles shall be roadworthy. Vehicles that require a license shall be properly licensed.
(7)
No recreational vehicle shall be parked or stored in any open space outside of a building unless such equipment is wholly owned by the property owner, who shall be in residence at the property in question. If the property is rented, such storage shall be permitted to the tenant only provided that such equipment is owned by the tenant.
(8)
All equipment shall be parked, stored or screened by fencing and/or vegetation as inconspicuously as possible on the property. The area around the equipment or vehicle must be kept weed and dust-free and free of accumulation of other storage material.
(x)
Tourist rooming house.
(1)
Description: Includes all lodging places and tourist cabins and cottages, other than hotels and motels, in which sleeping accommodations are offered for pay to tourists and transients. It does not include private boarding houses or rooming houses not accommodating tourists or transients, or bed and breakfast establishments regulated under ACTP 73.
(2)
Permitted by right: All zoning districts.
a.
Land use requirement: Tourist rooming house shall only be located as an accessory land use within a residential land use as defined in section 18-55.
b.
Annual village license required: Each tourist rooming house shall operate only during the valid period of an annual Village of Fontana tourist rooming house license for each calendar year. Operating a tourist rooming house without a current version of a valid license shall be considered a violation of this zoning ordinance, and subject to the penalties of section 18-257. The following information shall be provided on an annual basis, prior to issuance of said annual Village of Fontana tourist rooming house license:
1.
Completed Village of Fontana tTourist rooming house application, which includes the property owner name, address, and phone number; the designated operator's name, address, and phone number; the period of operation of up to 180 days in a calendar year, which must be consecutive;
2.
A current floor plan for the tourist rooming house at a minimum scale of one-inch equals four feet, and site plan of the property at a minimum scale of one-inch equals ten feet showing on-site parking spaces and trash storage areas;
3.
General building code inspection by village, and submittal of official building code inspection report with no outstanding compliance orders remaining;
4.
Fire code inspection by village, and submittal of official fire code inspection report with no outstanding compliance orders remaining;
5.
Proof of valid property and liability insurance for the dwelling unit;
6.
State of Wisconsin tourist rental house license;
7.
Seller's permit issued by the Wisconsin Department of Revenue;
8.
Village of Fontana room tax permit; and
9.
Payment of an administrative fee, set annually by the village board, to cover the costs to the village for administering the above.
The Village of Fontana tourist rooming house license shall be issued with the completion of the above requirements.
c.
Property management requirements: Each tourist rooming house shall be managed consistent with the following requirements:
1.
The total number of days of operation within any calendar year shall not exceed 180 days, which must be consecutive. This period of tourist rooming house operation shall be specified by the property owner in the required annual Fontana tourist rooming house application.
2.
The minimum rental period shall be a minimum of seven consecutive days by any one party.
3.
The maximum rental period shall be no more than 180 consecutive days by any one party.
4.
Similar facilities in which residential land uses are available for more than 180 days, or throughout the year, are a different land use that falls within the indoor commercial lodging land use category.
5.
The maximum number of occupants shall not exceed the total number licensed by the State of Wisconsin or two per bedroom plus two additional occupants, whichever is less.
6.
The tourist rooming house shall be operated by the property owner or by a property manager explicitly designated in the valid Fontana tourist rooming house application as the "designated operator".
7.
The property owner's and the designated operator's names, addresses, and 24-hour phone numbers shall be provided in the Village of Fontana tourist rooming house application and shall be updated within 24 hours upon any change in the property manager or the property manager contact information.
8.
The designated operator must reside within, or have their business located within, 25 miles of the tourist rooming house parcel.
9.
The designated operator must be available by phone 24 hours, seven days a week, during the period of operation designated in the Fontana tourist rooming house application.
10.
Each tourist rooming house shall provide and maintain a guest register and shall require all guests to register their true names and addresses before allowing occupancy. The guest register shall be kept intact and available by the designated operator for inspection by representatives of the village for at least one year from the day of the conclusion of the period of operation.
11.
Each tourist rooming house shall maintain the following written business record for each rental of the tourist rooming house: the true names and addresses of any person renting the property, the dates of the rental period (which must be a minimum of seven consecutive days), and the monetary amount or consideration paid for the rental. The business record shall be kept intact and available by the designated operator for inspection by representatives of the village for at least one year from the day of the conclusion of the period of operation.
d.
Property operational requirements: Each tourist rooming house shall be operated per the following requirements:
1.
The "requirements for tourist rooming house guests" form provided by the Village of Fontana to summarize village requirements for tourist rooming houses, and the site plan for the subject property clearly depicting guest parking spaces and the rear yard, shall be posted on the inside of the front door of each tourist rooming house throughout its period of operation.
2.
Parking requirements:
(i)
A minimum of two off-street parking spaces shall be provided on the subject property for each tourist rooming house. If the tourist rooming house provides three or more bedrooms, an additional on-site parking space is required for each additional bedroom over two.
(ii)
All guest parking for vehicles and trailers shall be within a parking space designated on the site plan, on an area paved with concrete or asphalt.
(iii)
All guest vehicles and trailers may only park on-site. Street parking for guests is not permitted.
(iv)
No parking is permitted on gravel, lawn, or planter bed areas.
3.
Site appearance requirements:
(i)
Aside from a changing mix of guests and their vehicles, there shall be no evidence of the property being used as a tourist rooming house visible on the exterior of the subject property.
(ii)
No exterior signage related to the tourist rooming house is permitted, other than the property address.
(iii)
No outdoor storage related to the tourist rooming house land use is permitted, except for typical residential recreational equipment, seating, and outdoor cooking facilities which are permitted only within the rear yard.
(iv)
No recreational vehicle, camper, tent, or other temporary lodging arrangement shall be permitted to accommodate guests.
4.
Neighborhood impact requirements:
(i)
No outdoor activity shall occur between the hours of 10:00 p.m. and 7:00 a.m.
(ii)
At all times, no noise, lighting, odor or other impacts from the subject property shall be detectable at the property line at levels exceeding the requirements of article 13 of the Fontana Zoning Ordinance.
(iii)
No vehicular traffic shall be generated by the tourist rooming house at levels exceeding those typical for a detached single-family dwelling unit.
5.
Tourist rooming house advertising:
(i)
No outdoor advertising is allowed on the subject property.
(ii)
The tourist rooming house shall not be advertised for availability in any form of media unless the required Village of Fontana tourist rooming house license has been issued.
e.
Penalties and license revocation.
1.
Violations of the requirements for tourist rooming houses, the provisions of the tourist rooming house license, and all other the requirements of the zoning ordinance are subject to separate daily fines per section 18-257. Violations will be issued to, and will be the responsibility of, the property owner.
2.
The annual tourist rooming house license may be revoked for more than two violations of the requirements of the license, the requirements specific to tourist rooming houses, the license, or the remainder of zoning code.
(Ord. No. 090412-02, § 1, 9-4-2012; Ord. No. 061118-02, § 3, 6-11-2018; Ord. No. 040419-01, § III, 4-4-2019)
(a)
Temporary farm product sales. The temporary outdoor display and sales of farm products, typically from a roadside stand. Temporary farm product sales shall adhere to the following listed regulations:
(1)
Shall comply with section 18-248, standards and procedures applicable to all temporary uses.
(2)
Display shall not obstruct pedestrian or vehicular circulation, including vehicular sight distances.
(3)
If subject property is located adjacent to a residential area, sales and display activities shall be limited to daylight hours.
(4)
Adequate parking shall be provided.
(b)
Temporary outdoor sales. The display of any items outside the confines of a building which is not otherwise permitted as a permitted or conditional use, or, a special event otherwise regulated by the Municipal Code. Examples of this land use include, but are not limited to, sidewalk sales, seasonal garden shops, tent sales, Christmas tree sales, and more than three garage sales per year. Temporary outdoor sales shall adhere to the following listed regulations:
(1)
Shall comply with section 18-248, standards and procedures applicable to all temporary uses.
(2)
The user shall provide a layout of the activities to the zoning administrator for approval prior to any event or sales activity.
(c)
Temporary outdoor assembly. Any organized outdoor assembly of more than 100 persons. Examples include, but are not limited to, an outdoor wedding or tent meetings. Temporary outdoor assembly shall adhere to the following regulations:
(1)
Shall comply with section 18-248, standards and procedures applicable to all temporary uses.
(2)
Activities shall not obstruct pedestrian or vehicular circulation, including vehicular sight distances.
(3)
If subject property is located adjacent to a residential area, activities shall be limited to daylight hours.
(4)
Adequate provisions for crowd control shall be made, and shall be described within the temporary use application.
(5)
Adequate parking, drinking water, and toilet facilities shall be provided, and shall be described in the temporary use application.
(d)
Temporary storage container. These containers are portable storage containers designed and used primarily for the temporary storage of household goods and other such materials for use on a limited basis on residential property. Temporary storage containers shall adhere to the following listed regulations:
(1)
Shall comply with section 18-248, standards and procedures applicable to all temporary uses.
(2)
The container shall not exceed outside dimensions of sixteen 16 feet in length, eight feet in width, and nine feet in height.
(3)
The container shall be permitted on the property for up to 14 days associated with each change of occupancy as defined by a recorded change in property ownership or valid lease.
(4)
The container cannot encroach on the public right-of-way, neighboring property, sidewalk, or be placed in the street.
(5)
The container must be placed on asphalt, concrete, gravel, or other hard-paved surface.
(6)
For all multifamily uses, including multiplex, apartments, and townhouses, use of temporary portable storage containers shall require review and approval by the zoning administrator. The applicant shall provide written permission from the land owner to place the temporary portable storage container on the property in accordance with the regulations listed in this section.
(e)
Temporary construction storage. Any structure or outdoor storage area designed for the on-site storage of construction equipment and/or materials for an active construction project. Temporary construction storage shall adhere to the following listed regulations:
(1)
The structure shall comply with section 18-248, standards and procedures applicable to all temporary uses.
(2)
The structure shall be removed within ten days of issuance of occupancy permit.
(3)
Projects requiring the structure to be in place for more than 365 days shall require a conditional use permit. Said time limit may be extended with village board approval.
(4)
The structure shall be limited to a maximum area not exceeding ten percent of the property's gross site area.
(f)
Temporary relocatable building. Any manufactured building which serves as a temporary building for less than six months. Temporary relocatable buildings shall adhere to the following listed regulations:
(1)
The structure shall comply with section 18-248, standards and procedures applicable to all temporary uses.
(2)
Facilities serving for more than six months shall be considered conditional uses and are subject to the general standards and procedures presented in section 18-246.
(3)
The unit must be placed on asphalt, concrete, gravel, or other hard-paved surface.
(4)
The structure shall be limited to a maximum area not exceeding ten percent of the property's gross site area.
(g)
Garage or estate sale (auction). The sale or offering for sale of miscellaneous used items commonly associated with residential use. Temporary garage or estate sales shall adhere to the following listed regulations:
(1)
Permits are not required for garage or estate sales.
(2)
Sales shall be limited to a maximum of three per calendar year; each sale shall be limited to a period of no more than three consecutive days.
(3)
Sales shall occur only during daylight hours.
(h)
Farmer's market. The temporary or occasional outdoor retail sales of farm produce, plants and flowers, bakery goods, and/or crafts from vehicles or temporary stands located within a parking lot or public right-of-way. Farmer's markets shall adhere to the following listed regulations:
(1)
Facility shall have vehicular access to a collector or higher classification street.
(2)
A minimum of one parking space shall be provided per vendor, plus adequate parking to accommodate customer traffic.
(i)
Limited duration special activities and events. Any use of a structure or land for an indoor and/or outdoor event for a limited period of time not otherwise addressed in subsections 18-65(a)—(h), above, where the site is not to be permanently altered by grading or construction. Events include, but are not limited to, art shows, outdoor festivals and concerts, antique boat show, hot air balloon launch, or benefit event. Limited duration special activities and events shall adhere to the following listed regulations:
(1)
Duration.
a.
Temporary activities or events shall be limited to a period of no more than two consecutive days in the AH-35, LR-0, SR-1, SR-2, SR-4, SR-5, AR-6, MR-8, MR-12, NB, OP, RP Districts and the Abbey Villas and Abbey Ridge Subdistricts. A temporary use permit is not required for these events or activities.
b.
Temporary activities or events shall be limited to a period of no more than 45 consecutive days in the IN, VC, CB Districts and the Abbey Resort and Abbey Harbor Marina Subdistricts of the RB District. A temporary use permit is not required for these events or activities.
c.
Temporary activities or events of a duration exceeding 45 consecutive days shall secure a temporary use permit per section 18-248.
(2)
Activities shall not obstruct pedestrian or vehicular circulation, including vehicular sight distances.
(3)
If subject activity area is located within 100 feet of a property with residential zoning, activities shall be limited to daylight hours except as enabled through the granting of a conditional use permit. (Note: The Abbey Villas and Abbey Ridge Subdistricts of the RB District are categorized as nonresidential zoning.)
(4)
Adequate provisions for crowd control shall be made, and shall be described within the temporary use application.
(5)
Adequate parking, drinking water and toilet facilities shall be provided, and shall be described in the temporary use application.
(j)
Placement of one or more temporary outdoor storage rack(s) for non-motorized watercraft on property owned in common as part of a subdivision or condominium association, subject to the following limits and requirements:
(1)
No more than six months of said placement and use in a calendar year: and
(2)
Storage capacity for each storage rack limited to not more than 20 non-motorized watercraft and not more than eight-foot in height; and
(3)
Use limited to non-motorized watercraft owned by residents of the subdivision or condominium association, with rack storage not available for rent or third-party use; and
(4)
The placement of said rack(s) shall comply with all zoning setbacks for the zoning district in which located; provided, however, that for a riparian association property, the shoreyard setback may be reduced to 25 feet for only one rack.
(k)
Food and beverage vehicles, carts, and stands. Food and beverage vehicles, carts, and stands are wheeled vehicles or transported structures or equipment with personnel that serve ready-to-consume food and/or beverage products to guests at private events or as an extension of catered services or as an alternative to catered services. Such products are cooked, prepared, and/or served for individual or shared portion service from these facilities. Common examples of this land use include food trucks, food trailers, food carts, grill trailers, canteen trucks, ice cream trucks, coffee trucks, donut trucks, smoothie trucks, mobile food kitchens, pushcart vendors, bicycle vendors, and similar vehicles, structures, or equipment. Food and beverage vehicles, carts, and stands shall adhere to the of following listed regulations:
(1)
No temporary use permit is required.
(2)
Shall require the property owner's written permission.
(3)
Shall limit service to only private events as an extension of catered services or as an alternative to catered services.
(4)
No freestanding signage is permitted in association with the use. On-vehicle or on-equipment signage is permitted, with a maximum sign area of 20 square feet.
(5)
Shall be located entirely within a parcel boundary with a minimum ten-foot setback to any lot line and any right-of-way line and shall not be located within a public right-of-way or access easement.
(6)
Shall be located within an area paved for vehicle parking such as a driveway or parking pad, or within one or more designated parking spaces within a parking lot. Shall not be located within a driving aisle or lane.
(7)
Shall maintain all required health inspection certificates and applicable licenses.
(8)
Shall comply with all village noise limitations in section 18-227.
(9)
Shall comply with all village lighting requirements in section 18-165.
(10)
Shall be fully removed daily at the close of business hours, and which at maximum shall be 7:00 a.m. to 9:00 p.m.
(l)
Temporary parking. An area of temporary or seasonal parking, defined as occurring for a consecutive period of no more than 150 days per calendar year. Temporary parking shall adhere to the following listed regulations:
(1)
The parking area shall have a maximum of ten parking spaces of standard nine-foot x 18-foot dimensions.
(2)
A temporary parking area is not required to be paved.
(Ord. No. 090412-02, § 1, 9-4-2012; Ord. No. 110121-01, § 1, 11-1-2021; Ord. No. 120621-04, §§ 1, 2, 12-6-2021; Ord. No. 100923-01, § 1, 10-9-2023; Ord. No. 032524-01, 3-25-2024)