DEVELOPMENT STANDARDS1
Editor's note—Ord. No. 2104, adopted Dec. 6, 2022, renumbered and reorganized Article Eight, §§ 8.06—8.18 as Article Nine, §§ 9.01—9.03 and 9.04—9.14. Former Article Nine, §§ 9.01—9.13 pertained to Appendices and said provisions have been renumbered and reorganized into Article Eleven, §§ 11.01—11.03. Historical Notations have been retained.
A.
Exterior Construction Requirements.
1.
Residential Construction Standards.
a.
SF-36 through 2F: All residential buildings and structures located in the residential districts SF-36, SF-30 through SF-8.4, and 2F shall be of exterior fire resistant construction having at least eighty percent (80%) of the total exterior walls above grade level and below the first floor plate line, excluding doors and windows, consisting of brick, stone, stucco, or material of equal characteristics as approved by the City in accordance with the City's building code and fire prevention code. Exterior Insulated Finishing System (EIFS) shall not be permitted. Strict adherence to this rule shall not be such as to prevent architectural creativity.
b.
Multi-family (MF): All multi-family residential buildings shall meet the requirements as outlined within the MF district.
c.
Manufactured homes shall meet all the above requirements for single-family residential construction standards.
d.
Mobile Homes & Temporary Buildings shall adhere to the following standards:
1)
Mobile homes shall be permitted only in a mobile home park and are exempt from the above construction requirements.
2)
All other temporary buildings for dwelling or storage purposes may be permitted by an SUP with approval of the City Council.
3)
Temporary Buildings for Keller Independent School District for classroom or other activities will be allowed with a site plan review by staff and a permit from the Community Development Department and shall be exempt from the construction standards requirements. All applicable building codes above shall be met for these structures.
e.
Accessory buildings shall adhere to the following standards:
1)
Accessory buildings one hundred twenty (120) square feet or less are excluded from the construction standards for residential construction.
2)
Accessory buildings, larger than one hundred twenty (120) square feet up to two hundred (200) square feet may be constructed using lightweight masonry siding and/or lightweight masonry soffit boards as defined in the Definitions section of this Code and/or manufactured pre-finished wood siding, in lieu of other masonry construction materials.
3)
All accessory buildings, larger than two hundred (200) square feet, in residential districts shall meet all requirements of this Code.
4)
In Single Family-Low Density zoning districts (SF-36), accessory buildings of five hundred (500) square feet or less may be constructed using lightweight masonry siding and/or lightweight masonry soffit boards as defined in the Definitions section of this Code and/or manufactured pre-finished wood siding, in lieu of other masonry construction materials.
5)
The use of exposed metal exterior walls and finishes shall be allowed only for barns and agricultural structures in the SF-36 zoning district. The use of storage containers shall not be allowed.
f.
Detached carports shall adhere to the following standards:
1)
In all residential zoning districts (SF - 36, SF - 30, SF - 25, SF - 20, SF - 15, SF -12, SF - 10, and SF - 8.4), a Specific Use Permit (SUP) is required. The construction of one carport per lot is permitted; a building permit is required for the construction of a carport regardless of size. Columns and roof structure must be compatible both in design and materials with the main structure. Detached carports shall be located at the rear of the property and observe all building setback requirements.
g.
Exceptions to the construction requirements may be considered by the City Council, as applicable, based only on the following:
1)
Architectural design and creativity.
2)
Compatibility with surrounding developed properties.
3)
Architectural variances may be considered for, but not limited to, Queen Anne, Victorian, English Tudor, Italian Villa, or Log designs.
2.
Non-Residential Construction Standards.
a.
All non-residential uses shall be of exterior fire-resistant construction in accordance with the City's building code and fire prevention code.
b.
Building facades, excluding doors, windows and glass wall construction, shall be constructed with a minimum of seventy-five percent (75%) of stone or brick. Portland cement stucco shall be allowed as noted in "c" below. Strict adherence to this rule shall not be such as to prevent architectural creativity. Other materials or a combination of brick, stone, stucco and other materials may be considered based on architectural creativity at the time of site plan review by the City Council.
c.
The use of three-quarter inch (3/4") Portland cement stucco with a minimum fire rating of one hour shall be permitted provided the area of the Portland cement stucco does not exceed fifty percent (50%) of the total façade area excluding doors, windows and glass wall construction.
d.
The use of textured concrete blocks (quick brick), colored split-face blocks, or any other wall surface material shall be noted on the site plan elevations and may be approved by the City Council at the time of site plan review.
e.
Exposed concrete, concrete block, or metal finishes shall not be permitted.
f.
The use of exposed metal exterior walls and finishes may be allowed, in the Light Industrial (LI) zoning district if approved by Specific Use Permit (SUP). Exposed metal exterior walls fronting or siding on public streets shall be prohibited. When metal exterior finishes are permitted, the use of corrugated panels is prohibited; profiled panels, deep ribbed panels and concealed fastener systems are permitted and shall have a finish of a permanent material such as a baked or enamel finish or painted to the wall manufacturer's standards. The use of galvanized, corrugated aluminum coated, zinc-aluminum coated, or unpainted exterior metal finish is prohibited. Metal exterior walls shall be compatible in color with the principal buildings and existing surrounding structures.
g.
Roof material shall be asphalt composition, standing seam metal, stone, clay or concrete roofing tile. The roof material shall be shown on the site plan and any future changes to the roof material or color shall be approved by an amended site plan. Adjacent buildings within a development shall have similar roof materials to provide for compatibility among individual buildings. Pad sites within a development shall have consistent roof material and color to create a consistent theme for the development.
h.
Carports constructed entirely out of metal may be permitted if architectural metal is proposed. Carports shall be shown on the site plan and shall be compatible in design and material with the main structure. Carports shall be located on the side or rear of the property and shall observe all building setback lines.
i.
Temporary Buildings shall adhere to the following:
1)
Temporary buildings to be used for field office or other construction purposes may be permitted for a specific period of time in accordance with a permit issued by the Community Development Department and subject to periodic renewal for cause shown. Temporary buildings are exempt from the construction standards requirements. Upon completion or abandonment of construction or expiration of permit, such field offices and building shall be removed at the satisfaction of the Community Development Department.
2)
Temporary Buildings for Keller Independent School District for classroom or other activities will be allowed with a site plan review by the Development Review Committee and a permit from the Community Development Department.
3)
All other temporary buildings shall be allowed only with a Specific Use Permit approved by the City Council.
j.
Building Colors and Exterior Light Effects for Non-Residential Buildings
1)
Building colors shall be compatible with one another. Preferred colors of buildings and accessory structures are earth tones (red, brown, tan, off-white, green). The use of florescent paint, florescent colors and the extensive use of bright colors on buildings as commercial identity or signage shall not be permitted.
2)
Service doors, down spouts, utility boxes and panels, and other similar features on the buildings shall be painted to match the primary masonry material on the building.
3)
The use of lighted stripes, exposed neon tubular lights or similar material on buildings or accessory structures shall not be permitted.
4)
Back-lit canopies or awnings shall not be allowed. Hard plastic awnings are prohibited. Suspended metal, masonry and fabric awnings are allowed.
B.
Design Standards for Non-Residential Buildings.
1.
Purpose of Design Review. The standards for architecture within the City of Keller are intended to reflect its Master Plan goal that new development will be "high quality" and "an aesthetic asset to the community." To ensure a consistent appearance of development, certain criteria are addressed. To create a positive overall development character, all structures within a development shall share an attractive and uniform appearance. Key issues for all buildings within a development include:
a.
A unified design theme.
b.
A standard of high quality construction and consistency in appearance.
c.
Respect for the contextual setting of the development within its district.
2.
Review and approval of all architectural design shall be conducted by the Development Review Committee as part of the development review process. The submission of all building elevations, and material/color samples as determined necessary to evaluate compliance is required. A detailed site plan as outlined in this Code shall be submitted for each use in the development. The Planning Manager or the City's consulting architects may also require any other reasonable and pertinent information necessary for design review. Design review of non-residential projects is required to ensure that community- wide development is in conformance with design guidelines for the Master Plan and the Unified Development Code.
C.
Design Standards and Site Layout.
1.
The following concepts apply to non-residential development site design review process:
a.
Formal Streetscape along Street Frontages
b.
Compatible Architectural Styles
c.
Create Street Edge with Architecture
d.
Shared Access - Reduce Curb Cuts
e.
Low Monument Signage
f.
Parking to Side and/or Rear of Building Preferred
g.
Hip or Mansard Roof
h.
Rear and Side Yard Landscaping Required
2.
Site layout shall reinforce street edge and create pedestrian-scaled open spaces. Large parking lots in front of buildings, along the street frontage, shall be avoided when possible.
3.
Building fronts and entries shall be oriented toward streets, unless otherwise approved. If a building sides to a street, the side façade shall be treated in the same architectural style and material as the front façade. Service entrances fronting on streets are prohibited.
4.
Buildings shall have a recognizable main entry, which should relate directly to the primary street frontage. Entry points may be indicated by a change of materials, roof or canopy features, a variation in wall planes, or other acceptable means which relate to pedestrian scale.
5.
All buildings shall have horizontal and vertical façade articulations every fifty feet (50'), which may be expressed as offset wall planes, pier and column effects, or other acceptable means.
6.
Buildings with façades longer than fifty feet (50') shall have their façades broken up into smaller areas through the use of varying facades setbacks, arcades, awnings, canopies, architectural features such as plazas, columns, or other acceptable means.
7.
Retail uses and buildings shall have as much storefront glass on the ground floor as possible so as to enliven the façade and open it up to pedestrian involvement. For uses over ten thousand (10,000) square feet with expansive facade areas without windows, an expression of windows with elements such as display windows or opaque windows with canopies and awnings may be considered.
8.
Rooflines shall be interrupted with gables or other architectural elements to break up the building profile.
9.
At the intersection of the facade and roof planes, there shall be a projecting cornice element of brick, or cast stone. Cornice detailing shall be added around the entire building.
10.
Windows along streets shall be equally spaced with a specific rhythm and shall not create long areas of flat solid spaces along streets. Varying window size and height based on the interior functions is discouraged.
11.
All façades of a building that are visible from a street, adjacent developments, public open spaces or parking lot, shall have the same architectural features as the front facade. This shall not only be limited to the same roof treatment, but shall also include building materials, façade articulation and window treatment.
12.
All buildings, at minimum, shall carry the same roof treatment around the entire building including the rear side.
13.
The design of visible roof structures shall be of shed, hip, gambrel, mansard and gable styles. Roofs should be of such height, bulk and mass as to appear structural even when the design is non-structural. Flat roofs may be considered when incorporated with acceptable design or mansard roof. Mansard roofs shall have a pitch of not less than 1:1.
14.
Roof top mechanical/electrical equipment shall be screened with an extension of the facade or a compatible roof design such as mansard roof. The screening of equipment with metal screening or other material shall not be allowed.
15.
All non-residential buildings shall have window head and sill details which, utilizes either projecting elements or materials of a contrasting color and texture, which will highlight the window treatment.
16.
Elements of franchised architecture may be permitted, but only if they complement or are otherwise compatible with adjacent development.
17.
Outside storage is prohibited unless approved as part of a Site Plan. This includes vending machines, ice machines, and similar uses.
18.
Uses utilizing shopping carts may have cart returns in parking lots. This area shall be contained with 6" curbs. Metal corrals are not allowed.
D.
Service Area Design and Requirements.
1.
To reinforce the professional image of each development site, all service areas and mechanical equipment, noise and odors shall be located at the rear of the property and screened from views using walls, berms, shrubs, trees and/or a combination of materials.
2.
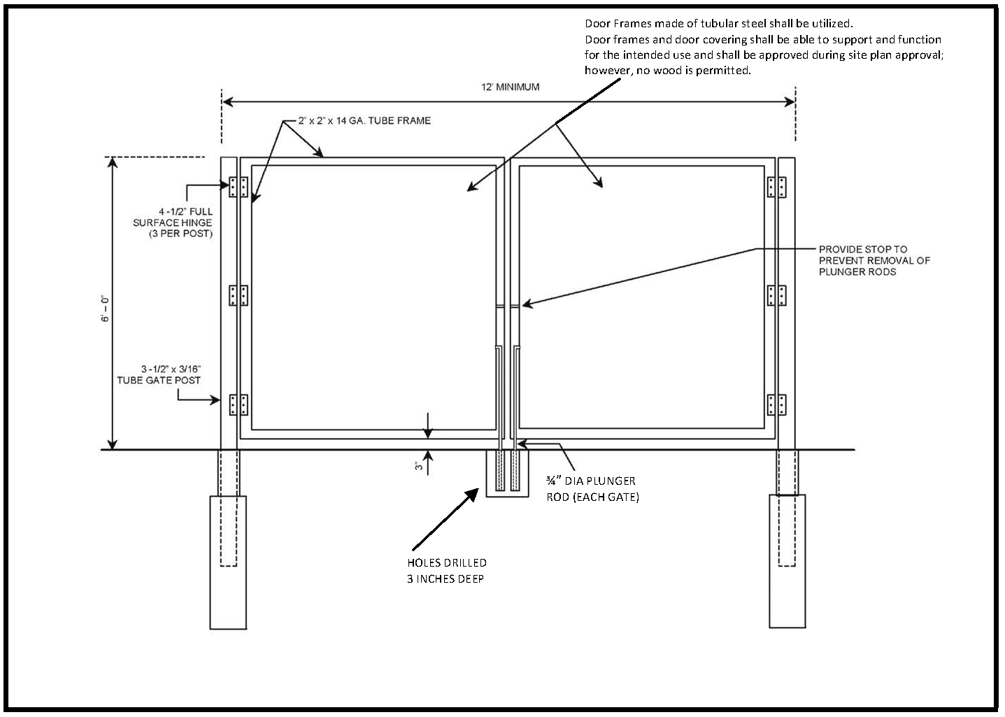
Service areas and waste containers (including fryer grease recycling bin or vessel when applicable) and trash compactors shall be located at the rear of the property and shall not face a street. The waste containers and trash compactors shall be screened with a masonry wall compatible in material and color with the primary building. Door frames made of tubular steel shall be utilized for waste container and trash compactor screening wall gate. Door frames and door covering shall be able to support and function for the intended use and shall be approved during site plan approval; however, no wood is permitted. A pedestrian access point shall be provided for access to a waste container and trash compactor enclosure to facilitate access without opening the gate (see Section 9.14 - Figure 20 and 21).
3.
Loading docks, truck service entrances, service entrances/overhead doors for automobile/boat oriented uses or any use requiring overhead service doors shall not face a street. These areas shall be designed to blend into the site and have low visual impact.
4.
Unless otherwise noted, the screening requirement shall be masonry screening. Any alternatives shall be shown on the site plan and be specifically approved based on the visual impact for the use. Openings in the masonry screening wall with non-wood louvers or ornamental metal or tubular steel open fencing, along with live screening on the outside of the louvers or open fencing, may be considered at time of site plan approval to allow for air flow to air conditioning units and other ground mounted mechanical equipment. The following uses shall be screened:
a.
Trash compactors and waste containers (including fryer grease recycling bin or vessel when applicable)
b.
Stored equipment or manufactured items
c.
Storage tanks and pumps
d.
TV, microwave, radio and cell phone antennas
e.
Above ground irrigation controllers and backflow preventers (may be live screening with a minimum two (2) foot horizontal clearance.)
f.
Electrical transformers, communications, cable, and other control boxes (may be live screening)
g.
Air-conditioning units (see Section 9.01D(4) above)
h.
Loading and truck service areas
i.
Shipping and receiving dock doors must blend with the architecture of the building they serve
j.
Other Ground-mounted mechanical equipment (see Section 9.01 D (4) above)
k.
Sound equipment
l.
Sources of odor must be contained
Reference: Sections 9.07, 9.08, and 9.09 for guidelines on screening
(Ord. No. 1891, 6-5-18; Ord. No. 1991, § 2(Exh. A), 11-17-20; Ord. No. 2104, § 2, 12-6-22)
A.
Purpose. To secure safety from fire, panic, and other dangers; to lessen congestion on public streets; to facilitate the adequate provision of transportation; to conserve the value of buildings; and to encourage the most appropriate use of land. Minimum off-street parking and loading shall be provided as set forth in the following schedules and provisions. Parking for uses not provided here-in shall be considered by the DRC based on studies produced by the Institute of Transportation Engineers, Traffic Impact Analyses provided and professional observation.
B.
General Provisions for Off-Street Parking.
1.
All off-street parking shall be provided on the same site as the use it is to serve.
2.
Unless otherwise noted in this Code, all parking spaces, driveway approaches, driveways, and drive aisles shall be located on a paved concrete, asphalt or alternative surface. Permissible alternative surfaces are concrete, brick, or natural stone pavers on compacted sub-grade and base sufficient to support the vehicle's Gross Vehicle Weight Rating. The paved parking surface area must encompass the entire footprint of the vehicle.
3.
No parking space, garage, carport, or other automobile storage space shall be used for the parking or storage of any heavy load vehicle (see Article Three - Definitions for Heavy Load Vehicle).
4.
No vehicle, including boats, camper trailers, trailers, or other similar vehicle shall be parked within the street rights-of-ways of major thoroughfares as shown on the Thoroughfare Plan, including state controlled roads.
5.
Parked vehicles on private property shall not encroach on any right-of-way, sidewalks, or parkways (unpaved portion of rights-of-way).
6.
In all zoning districts, parking and loading areas shall not be used for the sale, repair, storage, dismantling or servicing of vehicles or equipment; or for the storage of materials or supplies, or for any other use in conflict with the parking and loading areas (i.e., advertising or open storage of materials). A maximum of two (2) vehicles, owned by the property owner or with the permission of the property owner, may be displayed for the purpose of sale, lease, or similar purposes on private property.
C.
Residential Districts. In all subdivisions platted after December 15, 1992, garages shall not face or be in view from a public street unless allowed with a Planned Development zoning district or the following provisions of this Code.
1.
J-Swing garages are permitted in all zoning districts. The maximum garage area, including any accessory uses associated with the garage, shall not exceed seven hundred (700) square feet.
2.
Side entry garages where lot frontage is only to one street (not a corner lot) shall have a minimum of twenty-five feet (25') from the door face of the garage to the side or rear property line for maneuvering.
3.
Side entry garages on a corner lot where the driveway is from the side street shall have a minimum of twenty feet (20') from the door face of the garage to the side property line.
4.
A detached front facing garage located behind the main structure is permitted. The garage door(s) exposure to the street shall not exceed one hundred forty-four square feet (144').
5.
An attached front-facing garage is permitted if located a minimum one-hundred feet (100') behind the property line or right-of-way, whichever is closer. The garage door(s) exposure to the street shall not exceed one hundred forty-four square feet (144 S.F.). Similarly, front-facing garages with a maximum of seventy-two square feet (72 S.F.) of garage door exposure to the street are permitted if located a minimum of forty-five feet (45') behind the property line or right-of-way, whichever is closer.
6.
An attached front facing garage is permitted with a porte-cochère design that shields a part of the garage door(s) exposure.
D.
Non-Residential and MF Districts - Special Off-Street Parking Provisions.
1.
All off-street parking, maneuvering, loading, and storage areas shall be paved to a minimum of six inches (6") of reinforced concrete over six inches (6") cement-limed or crushed limestone stabilized base compacted to ninety-five percent (95%) density, or an alternative section approved by the Director of Public Works. Approaches shall be paved to a minimum of seven inches (7") of reinforced concrete over six inches (6") cement- limed or crushed limestone stabilized base compacted to nine-five percent (95%) density.
2.
Each standard off-street surface parking space size shall be in accordance with the City design standards (see Section 9.14 - Illustrations for parking design standards).
3.
All parking and loading spaces, and vehicle sales areas on private property shall have a vehicle stopping device installed so as to prevent parking of motor vehicles in any required landscaped areas, to prevent vehicles from hitting buildings, and to prevent any parked vehicle from overhanging a public right-of-way line, or public sidewalk. Parking shall not be permitted to encroach upon the public right-of-way in any case. All vehicle maneuvering shall take place on-site. No public right-of-way shall be used for parking, backing or maneuvering into or from a parking space.
4.
Handicap parking space(s) shall be provided according to the City's adopted Building Code and be in addition to the minimum parking requirements.
5.
Storage of motor vehicles, other than the property owners' vehicles, in any zoning district is prohibited. Motor vehicles sales lots or any lot/area used for such a purpose shall be allowed only by approval of a Specific Use Permit (SUP).
6.
To ensure that all requirements set forth in this section are carried forward, it will be the responsibility of the owner of the property to adequately maintain the facility and comply with this Code. All parking areas shall be kept free of trash, debris, vehicle repair operation or display and advertising uses. The parking area layout, location and number of provided spaces shall not change without approval of the Community Development Department.
7.
Off-street stacking requirements for drive-through facilities.
a.
A stacking space shall be an area on a site measuring eight feet (8') by twenty feet (20') with direct forward access to a service window or station of a drive-through facility which does not constitute space for any other circulation driveway, parking space, or maneuvering area. The following stacking requirements may be used as a guide but may be modified at the time of site plan review based on use and design of this facility:
1)
For financial institutions with drive-through facilities, each teller window or station, human or mechanical five (5) stacking spaces.
2)
For each service window of a drive-through restaurant, a minimum of six (6) spaces.
3)
For kiosks, a minimum of two (2) stacking spaces for each service window.
4)
For each full service car wash, vacuum or gas pump lane, a minimum of seven (7) stacking spaces.
5)
For each self-service (drive-through/automated) wash bay, a minimum of three (3) stacking spaces in addition to the wash bay.
6)
For each self-service (open bay), a minimum of two (2) stacking spaces in addition to the wash bay.
7)
For automobile quick lube facilities, a minimum of three (3) stacking spaces in addition to the service bay.
E.
Off-Street Loading Spaces - All Districts.
1.
All retail, commercial, and industrial structures, on an as needed basis, shall provide and maintain an off-street area for the loading and unloading of merchandise and goods at a ratio of at least one (1) space for the first twenty thousand (20,000) square feet of gross floor area and one (1) space for each additional twenty thousand (20,000) square feet of gross floor area or fraction thereof. A loading space shall consist of an area of a minimum of twelve (12) by thirty (30) feet. All drives and approaches shall provide adequate space and clearances to allow for the maneuvering of trucks off-street. Each site shall provide a designated maneuvering area for trucks. These requirements may be modified based on use at the time of site plan review.
2.
All loading areas and service bay doors shall be designed where loading doors or docking areas are not directly visible from streets. These areas shall be fully screened with a screening wall. Live landscaping may be allowed based on use or location.
3.
All loading areas shall be designed to minimize the impact on adjacent uses. If loading areas are adjacent to residential (single-family, duplex, or multi-family) developments or zoning districts, loading and unloading hours shall be restricted to 6:00 A.M. to 10:00 P.M.
4.
Garage doors or service bays for auto/boat motor vehicle related uses shall not face a street.
F.
Parking Access from a Public Street - All Districts.
1.
In the approval of a Detailed Site Plan, consideration shall be given to providing entrance/exit drives which extend into the site to provide adequate queuing of vehicles on the site. If a deceleration lane is not provided, a minimum distance of 100' from a major thoroughfare must be included as shown on the Thoroughfare Plan.
2.
In all Districts (except all Single-Family and Townhome Zoning Districts) building plans shall provide for entrance/exit drive(s) appropriately designed and located to minimize traffic congestion or conflict within the site and with adjoining public streets as approved by the City.
a.
Based upon analysis by the City, if projected volumes of traffic entering or leaving a development are likely to interfere with the projected peak traffic flow volumes on adjoining streets, additional right-of-way and paving in the form of a deceleration lane or turn lane may be required of a developer in order to reduce such interference.
b.
The determination of additional right-of-way or paving requirements shall be made at the time the final site plan is submitted for approval.
3.
Vehicular access to non-residential uses shall not be permitted from alleys serving residential areas.
G.
Parking Requirements Based on Use. At the time any building or structure in any district is erected, structurally altered, or changes use needing additional parking, there shall be provided off street parking spaces in accordance with the following requirements. Any parking space(s) necessary to meet the requirements of the Americans with Disabilities Act (ADA) do not count toward the fulfillment of the parking requirements of this Code. The below requirements may be modified at the time of site plan review on a case by case basis.
1.
Assisted Living - One (1) space per two (2) units.
2.
Art gallery/museum - Three (3) spaces per one thousand (1000) square feet of gross floor area.
3.
Automobile parts sales (indoors) - One (1) space per four hundred (400) square feet of floor area.
4.
Automobile sales or service - One (1) space per five hundred (500) square feet of floor area.
5.
Bank, Savings and Loan, or similar institution - One (1) space per three hundred (300) square feet of gross floor area.
6.
Bed and breakfast facility - One (1) space per guest room in addition to the requirements for a normal residential use.
7.
Bus or truck repair, parking, storage area, or garage - One (1) space for each five hundred (500) square feet of floor area or repair garage with a minimum of five (5) spaces.
8.
Business or professional office -
Gross Floor Area (sq. ft.) Parking Requirements
• less than 10,000 sq. ft. 1 per 330 sq. ft.
• 10,000 to 75,000 sq. ft. 1 per 400 sq. ft.
• 75,000 sq. ft. & over 1 per 450 sq. ft.
9.
Car wash (self-service) - One (1) space per washing bay and one (1) space per vacuum cleaner bay.
10.
Car wash (full-service) - One (1) space per one hundred fifty (150) square feet of floor area.
11.
Church, rectory, or other place of worship - One (1) parking space for each three (3) seats in the main auditorium.
12.
College or University - Four (4) spaces per one-thousand (1000) square feet of gross floor area.
13.
Community Center- Three (3) spaces per one-thousand (1000) square feet of gross floor area.
14.
Commercial Amusement (indoor) - Three (3) spaces per one-thousand (1000) square feet of gross floor area, or as follows:
a.
Billiard - Five (5) spaces per thousand (1000) square feet of gross floor area. b. Bowling - Four (4) spaces for each alley or lane.
c.
Bingo - One (1) space for three (3) seats (design capacity) or one (1) per one hundred (100) square feet of total floor area, whichever is greater.
d.
Gymnasium - Five (5) spaces per thousand (1000) square feet of gross floor area.
e.
Indoor jogging - Five (5) spaces per thousand (1000) square feet of gross floor area.
f.
Indoor Tennis - Three (3) spaces for each court.
g.
Movie theater - One (1) for every three (3) seats.
h.
Raquetball - Two (2) spaces for each court
i.
Roller skating or Ice skating rink Five (5) spaces per thousand (1000) square feet of gross floor area.
j.
Soccer complex - Thirty eight (38) spaces per field.
k.
Swimming pool - Five (5) spaces per thousand (1000) square feet of gross floor area.
l.
Weight lifting - Five (5) spaces per thousand (1000) square feet of gross floor area.
m.
All areas for subsidiary uses not listed above or in other parts of this section (such as restaurants, office, etc.), shall be calculated in with the minimum specified for those individual uses.
15.
Commercial amusement (outdoor) - Ten (10) spaces plus one (1) space for each five hundred (500) square feet over five thousand (5000) square feet or as follows:.
a.
Golf course - Twelve (12) spaces per hole.
b.
Water park - Seventy eight (78) spaces for each acre.
16.
Commercial wedding/event center - One (1) space for three (3) persons (design capacity).
17.
Condominium - One and a half (1.5) space per unit.
18.
Convenience store (with fuel pumps) - One (1) space per one hundred forty (140) square feet of floor area plus one (1) space for each three (3) gasoline pump units (a unit may have up to six (6) nozzles for gasoline disbursement). Spaces in pump areas qualify as spaces for the parking requirement.
19.
Convenience store (without fuel pumps) - One (1) space per three hundred (300) square feet of gross floor area.
20.
Convention center - One (1) space for three (3) persons (design capacity).
21.
Copy shop - One (1) space per three hundred thirty (330) square feet of floor area.
22.
Child Care - One (1) space for four (4) students (design capacity).
23.
Dry cleaner - One (1) space per three hundred (300) square feet of floor area.
24.
Dance Hall, Aerobics, Assembly or Exhibition Hall Without Fixed Seats - One (1) space for three (3) persons (design capacity).
25.
Flea Market - One (1) space for each five hundred (500) square feet of site area. Dirt or gravel parking lots are not permitted.
26.
Fraternity, Sorority, or Dormitory - One (1) parking space for each two (2) beds on campus, and one and one-half (1½) spaces for each two beds in off campus projects.
27.
Furniture or Appliance Store, Wholesale Establishments, Clothing or Shoe Repair or Service - Two (2) parking spaces plus one (1) additional parking space for each three hundred (300) square feet of floor area over one thousand (1,000).
28.
Hardware Store - Two (2) parking spaces plus one (1) additional parking space for each five hundred (500) square feet of floor area over one thousand (1,000).
29.
Hospital - Two and a half (2.5) spaces per one thousand (1,000) square feet of gross floor area.
30.
Hotel - One (1) per room for the first two hundred fifty (250) rooms and .85 space per room for each room over two hundred fifty (250), plus one (1) space per five (5) restaurant/lounge area seats, plus one (1) space per three hundred (300) square feet of meeting/conference areas.
31.
Industrial Uses - One (1) space for each one thousand (1,000) square feet of gross floor area.
32.
Library - Three and a half (3.5) spaces per thousand (1,000) square feet of gross floor area.
33.
Lodge or Fraternal Organization - One (1) space per two hundred (200) square feet of gross floor area.
34.
Machinery or Heavy Equipment Sales - One (1) space per five hundred (500) square feet of gross floor area.
35.
Manufacturing - One and one-third (1.3) spaces per one thousand (1,000) square feet of gross floor area.
36.
Medical or Dental Office - One (1) space per two hundred (200) square feet of gross floor area. Facilities over 100,000 square feet shall use the parking standards set forth for hospitals.
37.
Mini-Warehouse - One (1) space per five thousand (5,000) square feet of gross storage area plus one (1) space per three hundred (300) square feet of gross floor area.
38.
Mobile Home or Mobile Home Park - Two (2) spaces for each mobile home plus additional spaces as required herein for accessory uses.
39.
Mortuary or Funeral Home - One (1) parking space for each two hundred (200) square feet of floor space in slumber rooms, parlors or individual funeral service rooms.
40.
Motel - One (1) per room for the first two hundred fifty (250) rooms and .85 space per room for each room over two hundred fifty (250), plus one (1) space per three hundred (300) square feet of meeting/conference/business office areas.
41.
Motor-Vehicle Salesroom and Used Car Lots - One (1) parking space for each five hundred (500) square feet of sales floor for indoor uses, or one (1) parking space for each one thousand (1,000) square feet of lot area for storage, sales and parking area, whichever is greater.
42.
Multi-family - One (1) space per each efficiency or one (1) bedroom unit; One and a half (1.5) spaces per each two (2) bedroom unit; Two (2) spaces per each three (3) bedroom unit; half (0.5) a space per each additional bedroom
43.
Nursing Home - One (1) space per thousand (1000) square feet of gross floor area.
44.
Office, general - One (1) space per three hundred fifty (350) square feet of gross floor area.
45.
Office, government - One (1) space per two hundred fifty (250) square feet of gross floor area.
46.
Pharmacy without drive-thru - One (1) space per three hundred fifty (350) square feet of gross floor area.
47.
Pharmacy with drive-thru - One (1) space per four hundred fifty (450) square feet of gross floor area.
48.
Places of Public Assembly Not Listed - One (1) space for each three (3) seats provided.
49.
Race track, horses or dogs - One (1) for each three (3) seats plus one (1) space for each employee. Stable areas shall provide storage areas for horse trailers.
50.
Retail or Personal Service Establishment, Except as Otherwise Specified Herein - One (1) space per two hundred (200) square feet of gross floor area.
51.
Retirement Home - One and a third (1.3) space for each dwelling unit.
52.
Restaurant (Full-Service), Private Club, Night Club, or Cafe - One (1) parking space for each one hundred fifty (150) square feet of gross floor area.
53.
Restaurant (Fast-food or Drive-In Type) - One (1) parking space for each one hundred (100) square feet of seating and waiting area.
54.
Rooming or Boarding House - One (1) parking space for each sleeping room.
55.
Sanitarium, Convalescent Home, Home for the Aged or Similar Institution - One (1) parking space for each five (5) beds.
56.
School, Elementary (grades K-6) - One (1) parking space for each five (5) students (design capacity).
57.
School, Secondary, or Middle (grades 7-8) - One (1) parking space for each ten (10) students (design capacity).
58.
School, High School (grades 9-12) - One space for each two (2) students, faculty and staff (design capacity).
59.
Supermarket - Three and eight tenths (3.8) spaces per thousand (1,000) gross floor area.
60.
Theater, Indoor or Outdoor (live performances), Sports Arena, Stadium, Gymnasium or Auditorium (except school auditorium) - One (1) parking space for each three (3) seats or bench seating spaces.
61.
Townhouse, Patio Home, or Single Family Residential - Two (2) spaces per dwelling unit.
62.
Truck stops - One (1) truck parking space for each ten thousand (10,000) square feet of site area plus one (1) vehicle parking space per two hundred (200) square feet of building area.
63.
Veterinarian Clinic - One and three quarters (1.75) space per thousand (1000) square feet of gross floor space.
64.
Warehouse or Wholesale Type Uses - One (1) space for two thousand (2,000) square feet of gross floor area.
H.
Rules for Computing Number of Parking Spaces. In computing the number of parking spaces required for each of the above uses, the following rules shall govern:
1.
"Floor Area" shall mean the gross floor area of the specific use.
2.
Where fractional spaces result, the parking spaces required shall be constructed up to the next whole number.
3.
The parking space requirements for a new or unlisted use not specifically mentioned herein shall be the same as required for a use of similar nature. If the proposed use is not similar to any of the uses listed herein, a determination shall be made by the Planning Manager in accordance with the requirements for the most closely related use specified in this section.
4.
For buildings that have mixed uses within the same structure (such as retail and office), the parking requirement shall be calculated for the most intensive use. In cases where the design of the interior of the structure is not practical for alteration, the parking requirement may be calculated for each use within a structure for buildings over 40,000 square feet.
5.
In the case of mixed uses (different buildings) in the TC and PD Districts, only the parking spaces required shall equal the sum of the requirements of the various uses computed separately. Up to thirty percent (30%) of the parking spaces required for a theater, stadium or other place of evening entertainment (after 6:00 P.M.), or for a church, may be provided and used jointly by banks, offices, and similar uses not normally open, used, or operated during evening. Shared parking must be on the same parking lot. Reduction due to shared parking shall be determined by the Planning Manager. To assure retention of the shared parking spaces, the parties concerned shall properly draw and execute a document expressing the same and shall file this agreement with the application for zoning variance.
I.
Location of Parking Spaces. All parking spaces required herein shall be located on the same lot with the building or use served, except as follows:
1.
Where an increase in the number of spaces is required by a change or enlargement of use or where such spaces are provided collectively or used jointly by two (2) or more buildings or establishments, the required spaces may be located on a remote lot if approved at the time of site plan review.
2.
On-street parking as approved on a site plan.
3.
Public parking spaces as provided by the City of Keller.
J.
Use of Required Parking Spaces, Non-Residential Districts. Off-street parking and loading spaces shall be used only for their respective purposes and shall not be used for storage, sales, or display of boats, trailers, campers, motor vehicles or other goods, materials, products for sale, advertising or other purposes. Temporary displays as part of a special event may be approved by the Community Development Department.
(Ord. No. 1979, § 2(Exh. A), 8-18-20; Ord. No. 1986, § 2(Exh. A), 9-15-20; Ord. No. 1991, § 2(Exh. A), 11-17-20; Ord. No. 2104, § 1, 12-6-22)
A.
Purpose. Landscaping is accepted as adding value to property and is in the general welfare to the City. Therefore, landscaping is hereafter required of all new development.
B.
Scope and Enforcement. The standards and criteria contained within this section are deemed to be minimum standards and shall apply to all new developments and existing developments that require building permits for additions and alterations. Additionally, any use requiring a Specific Use Permit or a Planned Development zoning designation must comply with these landscape standards. The provisions of this section shall be administered and enforced by the Planning Manager or his/her designee.
C.
Permits. No permits shall be issued for any non-residential and multi-family development until a detailed landscape plan is submitted as part of a Site Plan as required in Section 4.15 - Non- Single Family Residential Construction Process. Prior to the issuance of a Certificate of Occupancy for any building or structure, all screening and landscaping shall be in place in accordance with the approved landscape plan.
D.
Maintenance. The owner, tenant and/or their agent, if any, shall be jointly and severally responsible for the maintenance of all landscaping. All required landscaping shall be maintained in a neat and orderly manner at all times. This shall include, but not to be limited to, mowing (of grass of six inches (6") or higher), edging, pruning, fertilizing, watering, weeding, and other such activities common to the maintenance of landscaping. Landscaped areas shall be kept free of trash, litter, weeds, and other such material or plants not a part of the landscaping. All plant material shall be maintained in a healthy and growing condition as is appropriate for the season of the year. Plant materials which die shall be replaced with plant material of similar variety and size, within ninety (90) days. Trees with a trunk diameter in excess of six inches (6") measured twenty-four inches (24") above the ground may be replaced with ones of similar variety having a trunk diameter of no less than three inches (3") measured twenty-four inches (24") above the ground. A time extension may be granted by the Planning Manager if substantial evidence is presented to indicate abnormal circumstances beyond the control of the owner or his agent. Failure to maintain any landscape area in compliance with this section shall result in the disapproval and revocation of any issued certificate of occupancy associated with the occupancy of said area.
E.
General Standards.
1.
All required landscaped open areas shall be completely covered with living plant material. Artificial landscaping materials such as wood chips and gravel may be used under trees, shrubs and other plants.
2.
Plant materials shall conform to the standards of the recommended plant list for the City of Keller (see Article Nine - Recommended List for Required Landscape Areas). Grass seed, sod and other material shall be clean and reasonably free of weeds and noxious pests and insects.
3.
Grass areas shall be sodded, plugged, sprigged, hydro-mulched or seeded except that solid sod shall be used in swales, earthen berms or other areas subject to erosion.
4.
Ground covers used in lieu of grass in whole and in part shall be planted in such a manner as to present a finished appearance and reasonably completed coverage within one (1) year of planting.
5.
All required landscaped open areas shall be provided with adequate and inconspicuous irrigation systems.
6.
Earthen berms shall have side slopes not to exceed 33.3 percent (three feet (3') of horizontal distance for each one foot (1') of height). All berms shall contain necessary drainage provisions as may be required by the City Engineer.
7.
Small shrubs shall be trimmed to a height no greater than three feet (3'). Ornamental trees shall be trimmed from the base up to a minimum height of three feet (3').
F.
Minimum Landscaping Requirements for Non-Residential and Multi-Family.
1.
Buffers.
a.
Minimum thirty-foot (30') landscape buffer adjacent to all thoroughfares with four (4) or more lanes as classified on the current Comprehensive Thoroughfare Plan.
b.
Minimum fifteen-foot (15') landscape buffer adjacent to all other public streets.
c.
Minimum thirty-foot (30') landscape buffer adjacent to all properties with residential uses or zoning or when residential zoning or uses are across the street from the side or rear yard of a non-residential or multi-family development.
d.
Minimum ten-foot (10') landscape buffer adjacent to side and rear property lines when adjacent to non-residential uses or zoning. This provision does not apply in cases of shared driveways or parking between lots.
2.
Buffer Trees.
a.
Minimum four inch (4") caliper canopy trees in a straight spaced based on projected mature tree canopy widths near the center of the thirty-foot (30') landscape buffer adjacent to thoroughfares with four (4) or more lanes. To allow visibility of signage, trees may be planted in clusters to allow spacing between trees to be a maximum of sixty feet (60'). (Amended by Ord. No. 1799 on July 5, 2016)
b.
Minimum two (2) ornamental trees per fifty linear feet (50') of frontage planted in clusters or linear arrangement within the thirty-foot (30') landscape buffer adjacent to thoroughfares with four (4) lanes or more.
c.
Minimum three inch (3") caliper canopy trees spaced based on projected mature tree canopy widths in a straight line near the center of all other required buffers. To allow visibility of signage, trees may be planted in clusters to allow spacing between trees to be a maximum of sixty feet (60'). (Amended by Ord. No. 1799 on July 5, 2016)
d.
Existing trees of equal or greater size located within a required buffer may be counted toward the buffer tree requirement. New trees must be added to barren areas within buffer and trees may be arranged in formal masses instead of a straight line if existing trees are present anywhere inside the buffer.
3.
Landscaping Requirement for Parking Lots.
a.
Parking lots shall be 100% screened with shrubs or berms adjacent to all public streets. Berms shall be a minimum of three feet (3') in height and shrubs shall be a minimum of two feet (2') in height at time of planting. Shrubs shall be planted and maintained so as to form a continuous, unbroken, solid visual screen which will be three feet (3') high within one (1) year after time of planting.
b.
All parking lot islands must be a minimum of nine feet (9') in width and twenty feet (20') in length.
c.
No more than twelve (12) consecutive parking spaces shall be allowed without the interruption of a landscaped island.
d.
For large parking lots with several rows of parking spaces, a minimum ten-foot (10') wide continuous landscaped island shall be provided at various locations to break up the expanse of paving.
e.
The ends of all parking aisles must be terminated with a landscaped island.
f.
An island the size of one (1) parking space shall contain one (1) large three-inch (3") caliper canopy tree and an island the size of two parking spaces shall contain two (2) large three-inch (3") caliper trees.
g.
Continuous islands perpendicular to parking spaces must contain large three-inch (3") caliper canopy trees spaced at one (1) tree per forty feet (40').
h.
A minimum of 15% of all parking lots shall be landscaped.
i.
If the number of parking spaces exceed the Code requirements by more than ten percent (10%), a fifty (50) square foot of additional landscaping shall be provided for each additional parking space.
j.
Foundation planting a minimum of five feet (5') in width shall be provided at the fronts and sides of buildings and shall consist of a combination of groundcovers, shrubs, and ornamental trees.
G.
Minimum Landscaping Requirements for Residential.
1.
A minimum of two (2) large canopy trees with a minimum three-inch (3") caliper shall be planted in the required front yard of all new single-family uses. Existing trees of equal or greater size within the required front yard may be counted toward this requirement.
2.
A minimum of two (2) large canopy trees with a minimum three inch (3") caliper shall be planted in the required side yard adjacent to a street of all new single-family uses on corner lots. Existing trees of equal or greater size within the required side yard adjacent to a street may be counted toward this requirement.
H.
Tree Preservation. All new developments must fully comply with the requirements of Section 10.01 - Tree and Natural Feature Preservation.
I.
Sight Distance and Visibility.
1.
Rigid compliance with these landscaping requirements shall not be such as to cause visibility obstructions and/or blind corners at intersections. Whenever an accessway intersects a public street or when two (2) public streets intersect, a triangular visibility area, as described below, shall be created. Landscaping within the triangular visibility area shall be designed to provide unobstructed cross-visibility at a level between three (3) and six (6) feet. Trees may be permitted in this area provided that they are trimmed in such a manner that no limbs or foliage extend into the cross-visibility area. The triangular areas are:
a.
The areas of property on both sides of the intersection of an accessway and public right-of-way shall have a triangular visibility area with two (2) sides of each triangle being a minimum of ten feet (10') in length from the point of intersection and the third side being a line connecting the ends of the other two (2) sides.
b.
The areas of property located at a corner formed by the intersection of two (2) or more public rights-of-way shall have a triangular visibility area with two (2) sides of each triangle being a minimum of twenty-five feet (25') in length from the point of intersection and the third side being a line connecting the ends of the other two (2) sides.
2.
Landscaping, except required grass and low ground cover, shall not be located closer than three feet (3') from the edge of any accessway pavement.
3.
In the event other visibility obstructions are apparent in the proposed landscape plan, as determined by the City Engineer, the requirements set forth may be reduced to the extent to remove the conflict.
(Ord. No. 2104, § 2, 12-6-22)
The following is a list of plants and trees recommended for required landscape areas, including but not limited to, the City's public rights-of-way, commercial developments, residential screening walls, parking lot islands, and landscaped buffers. It includes lower water use plants when grouped according to water needs. This will reduce the amount of water utilized by the development. The plants and trees with the asterisks will require the least amount of water to maximize water reduction.
* Low water use
* Low water use
(Ord. No. 2104, § 2, 12-6-22)
Editor's note— Former § 9.04.
A.
Purpose. This section provides standards for the erection and maintenance of signs within the City of Keller. All signs erected, altered, changed, constructed, relocated, or replaced after the effective date of this Code shall comply with the requirements of this Code at the time of sign permit. The general objectives of these standards are to promote health, safety, morals, general welfare, convenience, and enjoyment of the public.
1.
To promote the safety of persons and property.
2.
To allow orderly sharing of commercial and non-commercial messages.
3.
To enhance the appearance and economic value of the streetscape.
4.
To protect the public welfare.
B.
Administration. The provisions of this Code shall be administered by the Planning Manager or designated representative and enforced by City Staff.
1.
Permit Required. No sign shall be erected, altered, changed refaced, constructed, relocated, replaced or repaired until a permit has been issued. It shall be an affirmative defense to this requirement that the sign type is listed as not requiring a permit elsewhere in this chapter.
a.
Permit Fee. A permit shall not be issued until the permit fee has been paid. The permit fee for a sign permit shall be the fee set out in the current fee schedule adopted by the City. A fee shall be charged for temporary signs for non-profits and religious institutions.
b.
Permit Application. A permit application must be made to the Community Development Department in order to obtain a permit. All applications for permits shall include;
1)
A drawing to scale of the proposed sign, that labels the type of material, height and width dimensions, and lighting specifications.
2)
All existing signs maintained on the premise.
3)
A drawing of the lot plan and building façade and dimensions indicating the proposed location of the sign, and sign specifications.
c.
All new permanent signs require an inspection. Inspections may be completed with the Site Final, Certificate of Occupancy Inspection, or separately, as appropriate.
2.
Sign Exemptions. The provisions of this section do not apply to the following and no permit shall be required:
a.
A sign or marker giving information about the location of underground electric transmission lines, telegraph or telephone properties and facilities, pipelines, public sewers, or water lines or other public utilities.
b.
Signs as governed by State law. When a City Ordinance is pre-empted by state law, state law will govern.
c.
Memorial signs or tablets, names of buildings and date of erection, when cut into any masonry surface or when constructed of bronze or other similar materials.
d.
Flags, emblems, and insignia of any governmental body.
e.
Decorative displays for holidays or public demonstrations which do not contain advertising.
f.
Indoor signs that are at least three feet (3') from window.
g.
Signs approved with a Special Event Permit, Seasonal Sales or Temporary Vendor Permit. Special Event signs may be located in the Median of Bear Creek Parkway between Rufe Snow Drive and Keller Smithfield Road.
h.
Street number signs not exceeding one (1) square foot in area.
i.
Government signs including national flag or state flag, or to limit flags, insignia, legal notices, or informational, directional, or traffic signs which are legally required or necessary to the essential functions of government agencies (State, Federal, Keller Independent School District, and the City of Keller).
j.
Signs on temporary construction trailers.
3.
Nonconforming Signs.
a.
Nonconforming signs shall not be enlarged, extended, structurally reconstructed, or altered in any manner, except that the sign face may be replaced or altered to reflect a change in ownership, business name or logo, or other message.
b.
Nonconforming signs may remain, provided that they are maintained in good repair, except as follows:
1.
A nonconforming sign or the structure supporting the sign which is damaged or destroyed to the extent of fifty percent (50%) or more of the current replacement value shall be removed or brought into compliance with this Code.
2.
A nonconforming sign or the structure supporting the sign shall be removed if the sign is damaged or destroyed to the extent of fifty percent (50%) or more.
3.
If the damage or destruction is less than fifty percent (50%), the sign must be under repair within thirty (30) days and all repairs must be completed within three (3) months. The sign shall not be enlarged in any manner.
4.
When a nonconforming sign, or a substantial part of the sign is damaged, destroyed, taken down, or removed, it may not be re-erected, reconstructed, or rebuilt except in full compliance and conformance with this Code. For purposes of this section, substantial shall mean if the cost of repair exceeds fifty percent (50%) of the cost of a new sign of the same construction and size. A nonconforming, on-premise, detached sign which is required to be relocated due to expansion of public right-of- way may be relocated on the same lot or tract, provided there is no more than one (1) detached sign per lot or tract. The relocation shall occur within six (6) months following completion of the road.
c.
Nonconforming signs, including Billboards, that are proposed to be modified to an electric message board shall require a special exception to the sign code.
4.
Special Exception.
a.
Any exception to this Code shall be presented in writing to the Planning Manager and shall be not be allowed unless approved by City Council after receiving a recommendation from the Planning and Zoning Commission. In reviewing a requested special exception to the sign code the Planning and Zoning Commission and City Council may consider:
1.
Whether the requested exception will not adversely affect public safety,
2.
Whether the requested exception will not adversely affect surrounding properties,
3.
Whether the requested exception will be in harmony with the spirit and purpose of this sign code,
4.
Whether special conditions exist which are unique to the applicant or property,
5.
Whether the requested exception demonstrates increased quality and standards, and
6.
Whether the requested exception will be aesthetically appropriate in the area.
5.
Special Sign Districts.
a.
A Special Sign District may be established for the purposes of promoting the character a unique area with separate and specific sign regulations.
b.
A Special Sign District may be established as part of a Planned Development Zoning District or separately. If established separately from a Planned Development Zoning District, a Special Sign District shall be approved by City Council after receiving a recommendation from the Planning and Zoning Commission.
C.
Sign Measurements.
1.
Sign Area. For the purposes of this section, sign area shall be measured as follows:
a.
Square or rectangular signs shall be measure as the length times the height of the sign (Figure 26, Section 9.14).
b.
Irregular shaped signs shall be measured as the sum of the areas of rectangles, triangles, circles, or combination thereof necessary to enclose the sign face (Figure 27, Section 9.14).
c.
Signs composed of individual cutout letters or figures shall be measured as the sum of areas of rectangles, triangles, circles, or combination thereof necessary to enclose the letters or figures (Figure 28, Section 9.14).
d.
For double-faced signs with less than thirty inches (30") between faces, and less than a thirty-degree interior angle between faces, only one side shall be counted as the total area. Where the faces are not equal in size, the larger sign face shall be used as the basis for calculating sign area (Figure 29, Section 9.14).
e.
Total sign area shall include all masonry supports and frames.
2.
Sign Height. Sign height shall be measured as follows:
a.
When measuring sign height, the height of the entire structure, including decorative and structural elements must be included. Monument and freestanding signs shall be measured from the base of the sign. Wall and attached signs will be measured from the lowest point of the sign or its supporting structures to the highest point of the sign or its supporting structures.
b.
Berming or increasing the ground height to increase sign height is not permitted. Height measurement shall be from average grade if berms are used.
c.
Clearance for a projecting sign is measured from the base of the building, or sidewalk passing under the sign to the lowest point of the sign or its supporting structure.
3.
Distance.
a.
Whenever a minimum distance between signs is indicated, it means the horizontal distance measured from the closest points of each sign as if each sign's closest point touched the ground.
b.
Whenever a minimum setback distance is indicated, it means the horizontal distance measured from the closest two points as if the sign's closest point touched the ground.
D.
General Standards.
1.
Prohibited Signs.
a.
Moving, flashing, intermittently-lighted, changing colors, beacons, revolving or similarly constructed signs are not allowed in any zoning district. It shall be an affirmative defense if such signs are otherwise allowed in this Code.
b.
No person shall attach any sign, paper, or material, or paint, stencil, or write any name, number (except house or street address numbers) or otherwise mark on any sidewalk, curb, gutter, or street.
c.
No person shall attach or maintain any sign upon any tree, utility pole, light pole or similar structure.
d.
Signs shall not display gestures or words that are obscene, profane, or pornographic in nature or any other manner that is illegal under State or Federal law.
e.
Signs over or in public rights-of-way are prohibited, except movement control, traffic control devices, street signs, way-finding, entry-way or portal signs, or directional signs placed by the City or State. Projected banner signs over the U.S. Highway 377/Main Street right of way are allowed in Old Town Keller district if part of a special event and in compliance with Texas Department of Transportation guidelines.
f.
All off-site (off-premise) signage is prohibited unless specifically allowed by this Code.
g.
Pole signs are prohibited. Monument sign bases must be at least the width of the sign.
h.
Signs attached to or upon any a trailer, skid, or similar mobile structure or vehicle shall be prohibited where any such vehicle is allowed to remain parked in the same location, or in the same vicinity, at frequent or extended periods of time, where the intent is apparent to be one of using the vehicle and signs for purposes of advertising an establishment, service, or product.
i.
Internally illuminated boxed cabinet wall signs are prohibited.
j.
Exposed neon tubing is prohibited unless used in reverse can letters.
k.
Abandoned signs' sign copy should be removed when the tenant leaves the space. The supporting structure may remain for future tenants.
l.
Off-premise signs are prohibited unless specifically allowed elsewhere in this code.
2.
Hazards & Nuisances.
a.
Signs shall not create a hazard due to collapse, fire, collision, decay, disrepair, location, or abandonment.
b.
Signs shall not obstruct firefighting or police surveillance.
c.
Signs shall not create traffic hazards by confusing or distracting motorists, or by impairing the driver's ability to see pedestrians, obstacles, or other vehicles, or to read traffic signs.
d.
Signs shall not obstruct or create a nuisance to persons using the public rights-of-way.
e.
Sign shall not be located in a manner that could constitute a hazard or nuisance.
f.
No sign shall be illuminated to an intensity or brightness to a degree that could constitute a hazard or nuisance.
3.
Maintenance.
a.
Signs shall be kept in well-maintained condition at all times to prevent deterioration, oxidation, rust, discoloration, or other unsightly conditions and in a safe condition free from all hazards including but not limited to faulty wiring and loose fastenings so as not to be detrimental to public health and safety. Signs that are not well-maintained, including but not limited to signs that are weathered, shall be removed.
b.
Signs shall not create urban blight due to lack of maintenance.
4.
Design Standards.
a.
Signs may be internally or externally illuminated unless stated otherwise in this code.
b.
No internally illuminated sign shall be erected within one hundred and fifty feet (150') of a single family or two-family residential development, unless the lighting is shielded from view of the residential development by the building, walls, or other permanent features. The distance shall be measured in a straight line.
c.
All permanent signs shall be constructed of quality materials including aluminum, masonry stone, brick, stucco, molded plastics and acrylic.
d.
All temporary signs shall be made of professional materials including plastic, wood, metal, corrugated plastics. Temporary banner signs shall be made of cloth, plastic or other fabric-like flexible material.
e.
All supporting hardware shall be concealed from view or integrated into the sign design.
f.
All signs, including temporary signs, must be printed and professional in appearance. No handwritten or spray painted signs are allowed, except window signs may be hand painted or applied directly to the window using paints or similar media.
g.
Signs shall be located a minimum of five feet (5') from the public right-of-way and shall comply with require visibility triangles.
h.
Signs for buildings in a multi-use development approved as part of one preliminary site evaluation or zoning application shall be compatible in design, size, material and lighting.
i.
The Old Town Keller (OTK) and Town Center (TC) zoning districts have additional design standards and sign allowances. Please see Section 8.03 (Q) for Old Town Keller Standards and Section 8.03 (P) for Town Center Standards.
5.
Temporary Sign Regulations.
a.
Signs at Polling Places. This subchapter is specific to Town Hall as a polling location. Signs are allowed at Town Hall only during the time it is used as a polling location during voting periods and only insofar as required by state law and the following time, place and manner requirements are met:
1)
Time. In accordance with Texas Election Code §61.003, signs shall be allowed at polling sites during early voting periods or on Election Day. Signs so posted must be removed within forty-eight (48) hours after the close of the early voting period or the close of the polls on Election Day, whichever is applicable.
2)
Place.
a)
No signs or campaign literature are permitted on City property, except as required by Texas Election Code section 61.003 or 85.036. This prohibition includes all locations, so long as there is no polling site at that location, including city hall, city service center, library, Keller Pointe, public parks, fire stations, police departments and water pumping stations.
b)
For so long as required by Texas Election Code section 61.003 and 85.036, all public property upon which there is located a polling place, outside the area described in §61.003, and within the area which is allowed to have signs posted shall meet the following requirements:
i.
The sign shall only be allowed to be located in the granite bed around the fountain on the North side of Keller Town Hall.
ii.
The sign cannot be a traffic or safety hazard.
iii.
The sign should be attached to a stake not to exceed a 9 gauge diameter (American Wire Gauge standard (AXG) driven into the ground well clear of tree roots, irrigation lines and any other underground vegetation or structures.
3)
Manner.
a)
Only three (3) signs per candidate or ballot measure proposition.
b)
Signs must be self-supporting.
c)
Signs cannot be illuminated.
d)
Signs shall not have any moving elements.
e)
Signs shall not exceed four feet (4') in height.
f)
The sign shall not exceed three (3) square feet in area.
6.
Attached Signs General Standards.
7.
Detached Signs General Standards.
a.
Unified-lot signs may be used in lieu of detached monument signs and shall comply with the area, height, setback, spacing, and design standards for detached monument signs.
1)
One unified-lot sign per street front may be placed on a premise consisting of two or more contiguous lots and/or tracts of land where each property owner has entered into a binding agreement to treat their separate properties as one lot for the limited purpose of signage. The agreement shall contain a legal description of the properties subject to the agreement; state that the parties, their heirs and assigns forego any rights to additional freestanding signs on the premises covered by the agreement; state that the agreement is a covenant running with the land to be filed and made a part of the Deed Records of Tarrant County, Texas; and that the agreement cannot be amended or terminated without the consent of the Planning Manager or designee.
2)
A unified-lot sign agreement shall not be effective until a true and correct copy of the agreement is filed in the Deed Records of Tarrant County, Texas, and a file- marked copy is filed with the Planning Manager or designee.
3)
Individual lots or tracts of land that are a part of a unified-lot agreement shall not be entitled to any other free-standing street front signage.
8.
Murals.
a.
Private murals are permitted in the Katy Road, Retail, OTK and Town Center Zoning Districts with approval from City Council following a recommendation by the Planning and Zoning Commission. Where permitted, the following applies:
1)
Shall not include any owner identification or commercial text message; however, it may contain graphics or images that relates to the products or services offered on the premises where the mural is located.
2)
Murals or art representation displaying any owner identification or commercial text message will be considered as a "flat/wall sign".
3)
Shall not depict nudity or obscene images and be generally acceptable for viewing by all audiences.
4)
Materials utilized in painting a mural shall have proven durability and shall be maintained or removed if not maintained.
9.
Billboards.
a.
Any Billboard in existence prior to the effective date of this code is considered a nonconforming sign.
b.
Existing Billboards that are proposed to be modified to an electronic message board shall require a special exception to the sign code and shall not be allowed unless approved by City Council.
(Ord. No. 1972, § 2(Exh. A), 6-16-20; Ord. No. 2104, § 2, 12-6-22; Ord. No. 2138, 9-5-23; Ord. No. 2166, § 2(Exh. A), 5-7-24)
A.
General Provisions.
1.
In a single-family or multi-family district, an accessory building or use is a subordinate or incidental building or use detached from the main building, not used for commercial purposes. A home occupation may be allowed in an accessory building as a subordinate use. The combined area of all accessory buildings on a lot shall be less than fifty percent (50%) of the main structure, unless approved by a SUP.
2.
In non-residential districts, an accessory building or use is a subordinate building or a subordinate use in the primary building, the use of which is secondary to and supportive of the main building. Accessory buildings shall not be permitted without a main building or primary use being in existence. Living quarters may be utilized in non-residential districts if occupied by the owner or manager of the non-residential use and shall not exceed two thousand (2,000) square feet.
3.
All accessory buildings shall be complimentary to the main structure, constructed of brick or stone or the same material as the main structure(s).
4.
Accessory buildings shall not contain full kitchen facilities unless approved as an accessory dwelling unit.
5.
Detached accessory buildings shall be prohibited in front of the main building.
6.
All side and rear setback requirements of the zoning district shall be met.
7.
Accessory buildings are not allowed in easement areas or alleys. Accessory buildings one hundred twenty (120) square feet or less are allowed to be a minimum of five feet (5') from the side and rear property lines. Accessory buildings one hundred twenty (120) square feet or less on residential properties zoned for patio homes shall meet the minimum side setback requirements of its respective zoning district.
8.
Accessory buildings are not permitted without a main structure unless on tracts of two (2) acres or more and used solely for agricultural purposes. Workshops, garages, or similar uses shall not be considered as agricultural purposes. In such case, a minimum of one hundred foot (100') front building setback is required.
9.
The maximum height of an accessory building shall not exceed fifteen feet (15') unless approved by a Specific Use Permit (SUP) for additional height (see below or Section 3.01 for definition of Building Height and Section 9.14 - Figure 9 for Illustration of Building Height). Accessory buildings of less than one hundred twenty (120) square feet shall not exceed ten feet (10') in height.
Building Height The vertical distance from the average line of the highest and lowest points of that portion of the lot covered by the building to the highest point of coping of a flat roof, or a deck line of a mansard roof or to the average height of the highest gable of a pitch or hip roof (Section 3.01).
10.
There shall be no more than two (2) detached accessory buildings per single-family lot and they must be separated by a distance of not less than ten feet (10').
11.
Wood shingles are not permitted for accessory buildings.
12.
Detached carports are considered as accessory buildings and shall meet the requirements of this section.
13.
The use of storage containers may be allowed for a limited time such as moving or construction with a permit. Extended use of storage containers may be considered with an SUP.
14.
All accessory buildings that are attached to the main structure (i.e. breezeways, trellised walkways, etc.) shall not be considered an expansion of the main structure unless the expansion shares a wall with the main structure or incorporates a porte-cochere, with a minimum width of ten-foot perpendicular to the primary building. Otherwise, the structure shall be defined as a detached accessory structure and will be subjected to all accessory building standards. This applies to accessory dwelling units also.
B.
Accessory Dwelling Units. Detached accessory dwelling units in the residential districts shall be allowed as an incidental residential use of a building on the same lot as the main dwelling unit and used by the same person or persons of the immediate family, and meet the following standards:
1.
The accessory dwelling unit shall be constructed behind the main dwelling on a lot with a minimum area of one-and-a-half (1.5) acres.
2.
All accessory dwelling units require approval of a Specific Use Permit by the City Council.
3.
Setback requirements shall be the same as for the main structure.
4.
Accessory dwelling units shall be constructed from the same materials as the main building.
5.
Accessory dwellings units are not permitted without the main or primary structure.
(Ord. No. 1991, § 2(Exh. A), 11-17-20; Ord. No. 2020, § 2, 6-1-21; Ord. No. 2040, § 2, 10-19-21; Ord. No. 2104, § 2, 12-6-22)
A.
General Requirements for all Properties.
1.
A fence permit shall be required for the following:
a)
All new fence construction.
b)
The replacement of an existing fence of more than eight (8) linear feet being replaced in the same location other than Agricultural Fencing.
c)
The relocation of any portion of fencing regardless whether the same panels are being used.
A permit is not required for replacement of posts or hardware if there is no replacement of panels.
2.
When sixty percent (60%) or greater of the total linear feet of a Legal Non-Conforming fence is replaced, the fence shall adhere to the standards of the current applicable Code. The percentage of linear feet being replaced cannot exceed more than fifty-nine percent (59%) in a twelve (12) month period from the date of the previous approved fence permit to retain the legal non-conforming status.
3.
All fences shall be kept in good repair and shall not create urban blight. Dilapidated fences shall be repaired or replaced in accordance with provisions of this Code. Wood fences may be painted or stained with natural wood colors. Iron fences may be painted. No bright unnatural colors are allowed on any fencing. Fencing of the same material(s) must be a consistent color.
4.
Dependent on the requirements below, fences may be constructed of wood, ornamental metal, tubular steel, or similar material. Fences may also be constructed of an open-style wood fencing with a thin-gauge wire screen attached directly behind the wood. White vinyl fencing is only permitted in the SF-36 zoning district if all of the following requirements are met:
a)
Designed as post and 2-, 3-, or 4-rail ranch fencing (see Diagram XX), and
b)
Applicant's property is used for agricultural purposes or is immediately adjacent to agricultural uses, and
c)
The fencing material is professional grade (e.g. made from virgin vinyl, contains UV inhibitors (such as titanium dioxide) and impact modifiers), and
d)
The fence is warrantied for a minimum of 20 years (versus "lifetime" warranty).
5.
Variances to this ordinance may be considered by the Zoning Board of Adjustment.
6.
"Open style" fencing requires that 50% of each panel be open. Examples of open fence styles include pipe, pipe and cable, wrought iron, picket, and rail fencing.
B.
Height Requirements.
1.
Height requirements are as follows:
a)
Eight feet (8') maximum for all interior rear and side yards. (Any area in front of the main structure is considered "Front Yard" per the UDC.)
b)
Open-style fence height requirements for front yards and side yards in front of the main structure are as follows:
1)
For properties which are located in SF-8.4, SF-10, SF-12, and SF-15 zoning districts, fence shall not exceed a height of thirty-six inches (36") when located in front of the main structure.
2)
For properties which are located in SF-20, SF-25, SF-30, and SF-36 zoning districts, fence shall not exceed a height of six feet (6') when located in front of the main structure and the property is a half-acre or greater. If the property is less than a half-acre, refer to B(1)(b)(1) of this code.
c)
Corner lots shall comply with the following requirements:
1)
The maximum height of fences for corner lots are as follows:
a)
Eight (8) feet for side fences and rear fences adjacent to a street.
b)
Eight (8) feet for connecting interior fences that are not adjacent to the street.
c)
When a fence is adjacent to a park or trail (regardless whether it is developed or passive) the maximum height allowed is eight feet (8').
d)
Ten feet (10') in height for athletic enclosures on residential properties which cannot be seen from the street or adjacent properties.
e)
When a fence abuts a subdivision Landscaping/Screening Wall, the height of a fence adjacent or perpendicular to a screening wall shall not exceed the height of the subdivision's screening wall or any other fence constructed by the developer at the time of initial development.
f)
Special exceptions for fence heights over these maximums may be made for properties of exceptional topography or necessary finished floor elevations to aid in screening when standard fence heights are inadequate. The determination will be made by the Director of Community Development or his/her designee.
C.
Locations for Fences In All Zoning Districts.
1.
In all zoning districts, fences adjacent to a street must be inset a minimum of four feet (4') from the property line except when front property line is adjacent to a bar ditch.
2.
In all zoning districts, solid fences for side and rear yards may be allowed on the property line when such fence is not adjacent to a street.
3.
The location of fences adjacent to a street on corner lots shall be as follows:
a)
Open-style fences (including front and side yards when adjacent to a street) shall be located a minimum of four feet (4') inside of the property line except when front property line is adjacent to a bar ditch.
b)
If a side or rear fence for a property is located in front of the main structure of an adjacent property:
1)
A solid fence may be located no closer than twenty-five (25) feet from the side property line facing the street.
2)
An open-style fence may be located no closer than four (4) feet from the side property line facing the street.
3)
Landscaping may not be added that inhibits traffic visibility of the corner.
4)
If the corner lot is on an entry to a cul-de-sac, the fence may extend to the build line on both street-facing sides even if closer than 25' and extends in front of the adjacent home. This latter scenario assumes the corner home was built behind the build line.
5)
Fences and landscaping are required to have a vision clip in accordance with this Code (see Art. 9 Section 9.03.I.b) so as not to impede the vision of traffic. Live screening is allowed inside of the fence.
d)
When a fence abuts a subdivision Landscaping/Screening Wall, a private fence may be constructed beyond the required setback line in order to adjoin the subdivision screening wall.
D.
Requirements for Lots Adjacent to Streets, Schools, Alleyways, and other Public Spaces. Allowable wood privacy fences adjacent to streets, schools, passive parks, alleyways, or visible from public spaces shall have the finished side facing the public space. All fence posts and structural components shall be placed on the interior of the lot.
E.
Requirements for Lots Adjacent to Thoroughfares. All new or replacement privacy wooden fences adjacent to a thoroughfare, as shown on the Thoroughfare Plan, shall be constructed of Cedar material with posts set in concrete and Cedar top caps, and bottom caps (also as known as "rot boards" or "kickboards") constructed of treated wood. The entire fence shall be stained with Ready Seal or equivalent wood sealant material. All replacement of Legal Non-Conforming fences more than sixty percent (60%) of total linear feet shall comply with this provision (see Art. 9 Sec. 9.13 Figure 19).
F.
Requirements for Lots in or Adjacent to a Drainage Way or Drainage Easement. Fences adjacent to a drainage way or drainage easement shall be as follows:
1.
All fences adjacent to drainage ways or drainage easements (including floodplains and floodways) shall be constructed of an open-style fence and may be constructed of ornamental metal, tubular steel, or similar material. Masonry columns may be considered in conjunction with one of the aforementioned materials and require approval of the Public Works Director or his/her designee when requested in or adjacent to a drainage way or drainage easement. Vinyl fencing is strictly prohibited. Wood fencing shall not be allowed within or immediately behind the required open fencing.
2.
All fences that are adjacent to drainage ways and drainage easements and have been historically constructed of wood and do not inhibit the Drainage Easement may be approved by the Public Works Director or his/her designee on a case-by-case basis. If approved, the fence shall meet all other applicable criteria as set forth in this Code.
3.
Swing gates may be required by the Public Works Director or his/her designee. In such cases, the fence must comply with all other applicable Codes in this ordinance.
G.
Requirements for Lots in or Adjacent to a Open Space or a Common Space. All fences adjacent to an open space and/or a common space area shall be constructed of ornamental metal, tubular steel, or similar material.
H.
Requirements for Lots Adjacent to a Park or Trail. All fences in or adjacent to a park or trail shall be as follows:
1.
Fences in or adjacent to a developed park or trail shall be constructed of ornamental iron, tubular steel, or similar material. Vinyl fencing is strictly prohibited.
2.
Fences in or adjacent to a passive park may be constructed of (privacy) wood with smooth side facing out, ornamental metal, or tubular steel. Fences may also be constructed of an open-style wood fencing with a thin-gauge wire screen attached directly behind the wood. Vinyl fencing is strictly prohibited.
I.
Requirements for Lots with a Swimming Pool. Swimming pool fences shall comply with the following requirements:
1.
Swimming pools barriers (fences) shall be no less than 48 inches (1219 mm) above grade where measured on the side of the barrier that faces away from the pool or spa. Such height shall exist around the entire perimeter of the barrier and for a distance of 3 feet (914 mm) measured horizontally from the outside of the required barrier.
2.
Openings in the fence shall not allow passage of a 4-inch-diameter sphere. All gates shall have self-closing, self-latching mechanisms installed.
3.
A main structure or accessory building may be used as part of a fence enclosure, provided that all entrances into the swimming pool area or court are equipped with gates as described herein, or doors with latches or locks.
J.
Requirements for Non-Residential Uses in Residential Districts. Fences for non-residential uses allowed in residential districts such as schools and churches shall be constructed of ornamental metal, tubular steel, masonry, or a combination thereof. Fences may also be constructed of an open-style wood fencing with a thin-gauge wire screen attached directly behind the wood. Vinyl fencing is strictly prohibited.
K.
Requirements for Drive Gates. Drive gates are permitted as follows:
1.
Properties in SF-8.4, SF-10, SF-12, SF-15 zoning districts in side or back yard.
2.
Properties in SF-20, SF-25, SF-30, and SF-36 zoning districts fencing is installed in the front yard, side yard, or back yard.
3.
All drive gates must adhere to the following criteria:
a)
Swinging drive gates must swing in towards the property and not out towards the street. Sliding gates may also be considered for a drive gate.
b)
All drive gates directly adjacent to a public street must be inset a minimum distance of twenty-five (25') from the edge of the curb or pavement, and
c)
All drive gates directly adjacent to a thoroughfare as shown on the Thoroughfare Plan must be inset for a minimum of fifty feet (50') from the edge of the curb or edge of pavement.
L.
Requirements for Chain Link Fencing. Chain link perimeter fencing is generally prohibited in all zoning districts with the following exceptions:
1.
Fencing of dog runs and athletic enclosures on residential properties are allowed as follows:
a)
Galvanized chain link is allowed when the fence cannot be seen from the street or adjacent properties.
b)
If the chain link fence can be seen from adjacent properties at grade level, the fence shall be vinyl clad in black, green or tan.
c)
Refer to "B(1)(c)(1)(d)" of this Code for height requirements of athletic enclosures.
2.
Existing chain link perimeter fencing on residential properties if no more than sixty percent (60%) of the fence is being replaced and no other replacement of fencing has been done in the previous twenty-four (24) months.
3.
Galvanized chain link fencing may be allowed with a permit on a temporary basis for construction purposes or special events and must be removed before the request of the final inspection of the building and/or site at the end of the special event, respectively.
4.
Temporary Construction fences shall comply with the following requirements:
a)
Galvanized chain link fencing is allowed on a temporary basis for non-residential projects and residential projects of five or more lots while under construction, with a permit. The fence adjacent to a street shall be four feet (4') inside of the property line and shall not encroach the Right-of-Way nor impede the vision of traffic.
b)
Fence wrap (mesh screening) eighty percent (80%) or greater opacity is required in conjunction with chain link fencing on the following types of projects:
1)
Non-residential projects;
2)
Residential subdivision projects of five (5) or more lots;
3)
All projects which are adjacent to or visible from a thoroughfare.
5.
Advertisement may be allowed to be printed on fence wrap in lieu of a Development Sign and must be listed on the fence permit application. Proposed advertising graphics shall be included as part of the permitting process for the fence wrap and chain link fence. If mesh screening is utilized for advertisement, a development sign is not required. Advertisement of project name, project elevation, construction company, lending agency, and all other companies related to the project may be allowed on every other panel, but no more than fifty percent (50%) of the fence wrap may be utilized for this purpose. The background of the fence wrap shall be white.
M.
Exceptions and Requirements for Agricultural Use Fences. Fences for Agricultural Use, as defined in Art. 3, Sec. 3.01, located in SF-36 Zoning District and having two (2) acres or greater are as follows:
1.
Fences may be constructed of barbed wire, electrical fencing, slick wire, pipe fencing, pipe and cable fencing, composite decking, and utility fencing panels or any combination thereof. White vinyl fencing is only allowed in the SF-36 zoning district in accordance with the requirements of Section 9.07(A)(4).
2.
Fence height requirements are as specified in "B" of this Code.
3.
Temporary enclosures such as "round pens" and "bullpens" that are used for the purpose of temporary confinement of farm animals or training of farm animals and are easily relocated within the property are not required to obtain a permit
4.
A permit is required when installing a new agricultural fence on the perimeter of the property, or replacing more than fifty percent (50%) of the total linear feet of an existing perimeter fence. Interior agricultural fences that separate pastures and paddocks do not require a permit.
(Ord. No. 1960, § 2(Exh. A), 12-17-2019; Ord. No. 1999, § 2(Exh. A), 1-5-21; Ord. No. 2044, § 2, 11-2-21; Ord. No. 2104, § 2, 12-6-22)
A.
All multi-family properties that have four or less units in each building shall refer to Section 9.07 - Fencing Requirements in Single-Family (S) and Two-Family (2F) Residential Zoning Districts for fencing requirements.
B.
A fence permit shall be required for any new fence construction or replacement of an existing fence.
C.
All fences shall be kept in good repair and shall not create urban blight. Dilapidated fences shall be repaired or replaced in accordance with provisions of this Code.
D.
All fencing for multi-family and non-residential districts shall be shown on the site plan for the development and be approved as part of the site plan approval.
E.
Fencing shall be constructed of wrought iron, tubular steel, masonry, live screening, or a combination thereof. Vinyl fencing is strictly prohibited.
F.
Wood, barbed wire, or chain link fencing is prohibited unless specifically requested on a site plan and approved by the City Council. When a site plan is not applicable, the Zoning Board of Adjustment may consider variances to this requirement.
G.
Fencing shall not exceed eight feet (8') in height unless specifically approved on a site plan by the City Council.
H.
Galvanized chain link fencing may be allowed with a permit on a temporary basis for construction purposes or special events and must be removed before the request of the final inspection of the building and/or site at the end of the special event, respectively.
1.
Temporary Construction fences shall comply with the following requirements:
a)
Galvanized chain link fencing is allowed on a temporary basis for non-residential projects and residential projects of five or more lots while under construction, with a permit. The fence adjacent to a street shall be four feet (4') inside of the property line and shall not encroach the Right-of-Way nor impede the vision of traffic.
b)
Fence wrap (mesh screening) eighty percent (80%) or greater opacity is required in conjunction with chain link fencing on the following types of projects:
1)
Non-residential projects;
2)
Residential subdivision projects of five (5) or more lots;
3)
All projects which are adjacent to or visible from a thoroughfare.
2.
Advertisement may be allowed to be printed on fence wrap in lieu of a Development Sign and must be listed on the fence permit application. Proposed advertising graphics shall be included as part of the permitting process for the fence wrap and chain link fence. If mesh screening is utilized for advertisement, a development sign is not required. Advertisement of project name, project elevation, construction company, lending agency, and all other companies related to the project may be allowed on every other panel, but no more than fifty percent (50%) of the fence wrap may be utilized for this purpose. The background of the fence wrap shall be white.
Requirements for Lots with a Swimming Pool
I.
Swimming pool fences shall comply with the following requirements:
1.
Swimming pool fences may be constructed of ornamental metal, tubular steel, or similar material. Vinyl fencing is strictly prohibited.
2.
Swimming pools barriers (fences) shall be no less than 48 inches (1219 mm) above grade where measured on the side of the barrier that faces away from the pool or spa. Such height shall exist around the entire perimeter of the barrier and for a distance of 3 feet (914 mm) measured horizontally from the outside of the required barrier.
3.
Openings in the fence shall not allow passage of a 4-inch-diameter sphere. All gates shall have self-closing, self-latching mechanisms installed.
4.
An apartment building or accessory building may be used as part of a fence enclosure, provided that all entrances into the swimming pool area or court are equipped with gates as described herein, or doors with latches or locks.
(Ord. No. 1999, § 2(Exh. A), 1-5-21; Ord. No. 2104, § 2, 12-6-22)
A.
Screening walls shall be constructed of masonry material such as brick, stone, concrete panels, or similar materials consistent in material, finish, and color with the primary buildings within the development or adjacent buildings in the area. Screening walls shall be a minimum of six feet (6') in height. An eight feet (8') wall may be required on a case-by-case basis at the time of the site plan review. The wall finish shall be consistent on both sides.
B.
Screening walls are required when a non-residential or multi-family development is constructed adjacent to a single-family or two-family residential use or zoning district. The construction responsibility is with the multi-family or the non-residential development.
C.
Screening walls are required between multi-family and non-residential uses or zoning districts. The construction responsibility is with the non-residential use.
D.
Screening walls are required if a single-family development is being constructed adjacent to a developed multi-family or a developed non-residential use without a screening wall in place. The single-family residential development is required to construct a screening wall in accordance with this Code.
E.
Screening walls are required around waste container, trash compactor, and loading areas.
F.
Screening walls are required around outside storage areas. Storage of material shall not exceed the height of the screening wall.
G.
Screening walls are required for ground mounted utilities and heating/cooling units (see Section 9.01(D)(4)).
H.
Alternative screening methods may be requested as part of the site plan review process and may be approved by the City Council.
I.
Screening wall plans are required to be submitted to the City for review and permitting and shall be signed and sealed by a Structural or Civil Engineer licensed by the State of Texas. All screening wall plans shall be submitted at time of Building Permit application in accordance with the application requirements listed in Section 4.14 - Landscaping and Screening Wall Plans.
J.
All screening walls shall be kept in good repair and shall not create urban blight. Dilapidated screening walls shall be repaired or replaced in accordance with provisions of this Code. Repairs or replacements shall match the existing material (brick, panel, stone, etc.) colors.
*** Refer to Section 5.10 for Single Family Residential Thoroughfare Screening.***
(Ord. No. 1891, 6-5-18; Ord. No. 2104, § 2, 12-6-22)
A.
Purpose.
1.
The purpose of a public art fee requirement is to establish art for the enjoyment, happiness, welfare, and morals of the public, to provide a variety of cultural opportunities within convenient distances from a majority of the residential and non-residential areas, to heighten awareness and appreciation for the arts, to foster development projects respond to the distinctive characteristics of the community and their specific locals, to enhance economic development and cultural tourism, and to provide a method to implement the City of Keller Public Arts Master Plan.
2.
This section is adopted to provide public art and public art areas as a function of land development in the City of Keller. The City Council has determined public art areas are necessary for the public welfare. Furthermore, the only adequate procedure to provide for public art throughout the City is by integrating a requirement for art dedication into the procedures for planning and developing property in the City.
B.
General Requirements. These requirements shall apply to all single-family, two-family, multi- family residential, and non-residential developments in the City of Keller.
1.
A fee for public art is required for all residential developments of five (5) lots or more, for all new non-residential or mixed-use development projects, and for all redevelopments of non-residential or mixed use projects where the floor area is increased by twenty five percent (25%) or more.
2.
Public Arts Fees:
a.
All fees shall be sufficient to acquire public art, at a price set forth in the City of Keller Code of Ordinances Chapter 2, Administration, Article 1, In General, Section 2-270, Administrative Fees.
b.
Payments received may be used only for public art acquisition, installation, and/or administration.
c.
For residential developments, payments shall be received prior to the filing of the final plat for public improvements and prior to the final inspection for individual homes.
d.
For non-residential or mixed-use developments, payments shall be received prior to the final plat or site inspection, as applicable.
(Ord. No. 2104, § 2, 12-6-22)
A.
Front Yards.
1.
On all corner lots, the front yard setback shall be observed along the frontage of both intersecting streets, unless approved specifically otherwise on a final plat (see Section 9.14 - Figure 4). Where single-family, duplex and townhome lots have double frontage, extending from one street to another, or are on a corner, a required front yard shall be provided on both streets unless a side or rear yard building line has been established along one frontage on the plat, in which event only one required front yard need be observed (see Section 9.14 - Figure 6). The side and/or rear yards in the case of single-family, duplex and townhome uses shall be identified and the front of the structure shall not face the side or rear yard.
2.
Where the frontage on one side of a street between two intersecting streets is divided by two or more zoning districts, the front yard shall comply with the requirements of the most restrictive district for the entire frontage (see Section 9.14 - Figure 5).
3.
The front yard shall be measured from the property line to the front face of the building, covered porch, covered terrace or attached accessory building. Eaves and roof extensions or a porch without posts or columns may project into the required front yard for a distance not to exceed four feet (4'), and subsurface structures, platforms or slabs may not project into the front yard to a height greater than thirty inches (30") above the average grade of the yard (see Section 9.14 - Figure 8).
4.
Minimum front yard setbacks and lot widths for lots with predominate frontage on the curved radius of a dedicated cul-de-sac street shall be as follows:
5.
Visual clearance shall be provided in all zoning districts so that no fence, wall, architectural screen, earth mounding or landscaping three feet (3') or higher above the street center line obstructs the vision of a motor vehicle driver approaching any street, alley, or driveway intersection as follows:
a.
At a street intersection, clear vision must be maintained for a minimum of twenty-five feet (25') across any lot measured from the corner of the property line in both directions (see Section 9.14 - Figure 22).
b.
At an intersection with an alley, this clearance must be maintained for ten feet (10') (see Section 9.14 - Figure 22).
c.
Shrubs and hedges three feet (3') or less in height, as measured from the centerline of the street, may be located in the visual clearance areas of all districts.
6.
Gasoline service station pump islands may not be located nearer than eighteen feet (18') to the property line adjacent to a public street. Pump islands for a gasoline filling station may extend beyond the front building line but shall not be closer than fifteen feet (15') to any property line not adjacent to a public street provided that other requirements of this Code are met.
7.
Where a future right-of-way line has been established for future widening or opening of a street or thoroughfare, upon which a lot abuts, then the front, side, or rear yard shall be measured from the future right-of-way line.
8.
Satellite dishes are prohibited in the front yard area of any district. Only one satellite dish shall be permitted per residential lot or primary structure.
B.
Side Yards.
1.
On a corner lot used for one or two-family dwellings, both street exposures shall be treated as front yards on all lots platted after July 6, 1960 except that where one street exposure is designated as a side yard. In such case, a building line shall be designated on an approved plat with a minimum side yard of fifteen feet (15') or more. On lots which were official lots of record prior to the effective date of this Code, the minimum side yard adjacent to a side street shall comply with the minimum required side yard for the respective district.
2.
Every part of a required side yard shall be open and unobstructed except for accessory buildings as permitted herein (see Section 9.06 for exceptions) and the ordinary projections of window sills, belt courses, cornices, and other architectural features not to exceed twelve inches (12") into the required side yard, and roof eaves projecting not to exceed thirty-six inches (36") into the required side yard. Air conditioning compressors and similar equipment are permitted in the side yard.
C.
Special Height Regulations.
1.
In the districts where the height of buildings is restricted to two (2) or two and one-half (2½) stories towers, antennas, and architectural features may extend for an additional height not to exceed fifty feet (50') above the average grade line of the building.
2.
Amateur radio antennas and other transmitting and receiving devices of microwave or electromagnetic waves for broadcasting use, shall not interfere with radio or television reception of adjoining property owners, and shall comply with all regulations of the Federal Communications Commission (FCC). In no manner shall the use of such equipment infringe upon adjoining property owners. Satellite dishes and other similar antennas shall be permitted on the roof as long as satellite dishes do not exceed three feet (3') in diameter and antennas do not exceed fifty feet (50') in height as measured from the ground.
D.
Seasonal/Temporary Uses.
1.
Temporary locations for sale of merchandise are prohibited in the city limits of Keller unless approved by a Specific Use Permit (SUP).
2.
Temporary sale of merchandise may be allowed as part of a special event.
3.
Seasonal uses and sale shall be limited to may be allowed for 30 days, twice annually by permit in all zoning districts.
4.
The following information is required for submittal to the Community Development Department for review at the time of application:
a.
The full name of the person(s) applying for a permit, address and telephone number, if any, and, if the merchant is selling on behalf of an organization, the name and address of the parent organization.
b.
A letter from the property owner which authorizes the merchant to use the property for the purpose of temporary outdoor sales. Such letter shall bear the property owner's name, address, phone number and signature.
c.
A copy of a limited sales tax permit issued by the state or proof that the goods are not subject to such sales tax.
d.
A statement of the type of goods or wares to be sold.
e.
Provide a copy of a current health certificate of merchandise of edible quality is to be sold; however, this shall not apply to the sale of candy, nuts or other edibles prepared and packaged by a nationally recognized manufacturer or a Texas manufacturer meeting standards imposed by state and local health codes, if such packages are unbroken.
f.
Submittal of two (2) sets of a site plan, drawn to scale and legible, indicating the following:
1)
Stands, shelters, trailers, tents and buildings on the property.
2)
Lighting and electrical equipment (temporary power pole, generator, etc.)
3)
Location and number of parking spaces. Indicate if parking area is paved or unpaved. Indicate all drive approaches. Curb jumping or on-street parking is not permitted.
4)
Location, type and size of signage. One (1) temporary sign is allowed and requires a sign permit (32 square foot maximum).
5)
If a tent is to be erected, a separate tent permit is required.
6)
Electrical permit application for all proposed work. All electrical work shall be performed by a licensed master electrician and shall comply with the electrical Ordinance.
7)
Plumbing permit application for all proposed plumbing work. All plumbing work shall be performed by a licensed master plumber and shall comply with the plumbing Ordinance.
5.
All required permits and inspections shall be completed prior to any seasonal sales lot opening for business.
6.
At no time shall any fire lane or emergency access be blocked or obstructed.
7.
Trees, stands, equipment, trash, signs, lighting and shelters shall be removed by permit holder.
8.
Each temporary seasonal sales permit issued under this division shall be subject to cancellation for violation of any provisions applicable to this policy.
E.
Fruit/Vegetable Stands. Fruit and vegetable stands shall be permitted only with a Specific Use Permit and shall follow the requirements of the Seasonal Use Permit prior to operation.
F.
Asphalt or Concrete Batching Plant (Temporary). A temporary asphalt or concrete batching plant permit may be approved by the Development Review Committee, subject to the following conditions. Any exceptions to the following conditions shall require approval of the City Council.
1.
The batching plant site shall comply with the applicable provisions of City, State and Federal laws.
2.
The batch plant shall not be located within six hundred feet (600') of any inhabited residence, whether in Keller or an adjacent municipality.
3.
Hours of operation will be limited to Monday through Friday, 7:00 a.m. to 7:00 p.m., and Saturday, 9:00 a.m. to 5:00 p.m. Aggregate trucks shall be prohibited from hauling to or from the site on Sunday.
4.
No portion of the batch plant or its operation shall be located on a public street.
5.
The batch plant shall only furnish concrete, asphalt, or both to the specific project for which the temporary permit is issued. The placement of a temporary batching plant for a private project is restricted to the site of the project.
6.
The temporary plant shall be operated in a manner that eliminates unnecessary dust, noise and odor (as illustrated by, but not limited to covering trucks, hoppers, chutes, loading and unloading devices and mixing operations, and maintain driveways and parking areas free of dust).
7.
The site must be clear of all equipment, material and debris upon completion of the project.
8.
All public improvements that are damaged during the operation of the temporary batching plant must be repaired or replaced within thirty (30) days of completion of the project.
9.
Upon expiration of the temporary permit and cessation of activities, the Director of Public Works or his designee and permitee shall walk the site to verify compliance with these special conditions.
G.
Carnival or Circus (Temporary). A temporary use permit for a carnival, circus or special event may be issued by the Building Official, subject to the following conditions:
1.
Applications for a permit shall be made no less than ten (10) days prior to the date such temporary carnival, circus or special event shall commence operation.
2.
The fee for such permit shall be five hundred dollars ($500.00). Non-profit organizations, school districts, and special events such as political rallies, tent meetings, festivals, revivals, bazaars, and other similar activities, shall be exempt from paying said fee.
3.
The application for permit shall contain the following:
a.
Name, address and telephone number of person, organization or company conducting the event.
b.
Date or dates of the carnival, circus, or special event.
c.
A plan showing in detail the different component parts of the temporary carnival, circus, or special event, including all shows, concessions, amusements, businesses and the location of each on the property.
d.
A written lease or agreement from the owner of such property stating permission to the applicant to operate a temporary carnival, circus or special event on said property.
e.
Proposed location and size of parking area.
f.
Location and quantity of sanitary facilities.
g.
The appropriate number of persons who are attending and, if applicable, the number and types of animals and vehicles that will constitute such event.
h.
The location and orientation of loudspeakers or sound amplification devices, if any.
i.
Proof of public liability insurance with minimum combined limits of one million dollars ($1,000,000). However, notwithstanding the foregoing, non-profit organizations, the Keller Independent School District, and special events, such as political rallies, tent meetings, festivals, revivals, bazaars, and other similar activities shall be exempt from providing proof of liability insurance, if there are no mechanical amusement rides or exotic animals, as defined in The City's Code of Ordinances.
j.
Any other information that the City shall deem necessary under the standards for issuance.
4.
Safe and orderly movement of normal traffic shall not be substantially interrupted.
5.
The temporary use shall not impede the movement of fire fighting equipment or ambulances.
6.
Waste from animals shall be removed daily from the premises. Animals shall not be kept closer than three hundred feet (300') to any residence or commercial establishment during non-operating hours of such event.
7.
The application shall be reviewed by the Community Development, Police and Fire Departments for security, fire and safety related issues.
8.
The permit will be valid for a maximum of five (5) days.
H.
Garage Sale. A garage sale shall be subject to the following conditions:
1.
A garage sale shall only be permitted as a temporary accessory use to a single-family detached or single-family attached dwelling.
2.
An individual garage sale shall not exceed three (3) consecutive days.
3.
The number of garage sales shall be limited to two (2) per calendar year per household.
4.
Subdivision/community wide garage sales shall be allowed two (2) per calendar year.
5.
Garage sale signs shall comply with sign regulations of this Code (see Section 9.05).
I.
Radio, Television, Telecommunication, and Microwave Towers.
1.
Notwithstanding any other provision of this Code, telecommunications antennas, when such are permitted by federal law and the laws of the State of Texas, shall be regulated and governed by the following use regulations and requirements:
a.
Telecommunications towers.
1)
Telecommunications towers shall be permitted only with an SUP in any zoning district after the applicant has filed an application in the form required by the City of Keller for such use.
2)
The responses in the application to be submitted shall be complete and satisfy all of the requirements of the application before the application shall be considered to have been submitted and shall also include the following additional requirements:
a)
Tower height, including antenna array, may not exceed one hundred twenty feet (120').
b)
Telecommunications towers must be a minimum of two hundred feet (200') or three (3) to one (1) distance to height ratio, whichever is greater, from structures used for residential purposes.
c)
New telecommunications towers must be a minimum distance of five thousand feet (5,000') from another telecommunications tower.
d)
All guys and guy anchors are located within the buildable area of the lot according to the base zoning of the property on which the tower is proposed to be located and not within the front, rear, or side yard setbacks and no closer than five feet (5') to any property line.
e)
The base of the tower is enclosed by security fencing.
f)
Equipment buildings must be similar in color and character to the main or adjoining building or structure or blend with the landscaping and other surroundings immediately adjacent to it and be screened by a wrought iron fence with evergreen hedge, or a masonry wall.
g)
The tower is erected and operated in compliance with current Federal Communication Commission and Federal Aviation Administration rules and regulations and other applicable federal and state standards.
h)
A telecommunications tower must be:
i.
Used by three (3) or more wireless communications providers; or
ii.
Designed and built so as to be capable of use by three (3) or more wireless communications providers including providers such as cellular or PCS providers using antenna arrays of nine (9) to twelve (12) antennas each within fifteen vertical feet (15') of each other with no more than three degrees (3°) of twist and sway at the top elevation and the owner of the tower and the property on which it is located must certify to the City that the antenna is available for use by another wireless telecommunications provider on a reasonable and nondiscriminatory basis and at a cost not exceeding the market value for the use of the facilities. If the property on which the tower is proposed to be located is to be leased, the portions of the actual or proposed lease that demonstrate compliance with the requirements of this paragraph shall be submitted with the SUP zoning application.
i)
All towers will be of a tapering monopole construction, except that another type tower shall only be allowed upon a showing that it would cause less visual impact on surrounding property than a similar monopole structure.
j)
No lettering, symbols, images, or trademarks large enough to be legible to occupants of vehicular traffic on any adjacent roadway shall be placed on or affixed to any part of a telecommunications tower, antenna array or antenna, other than as required by FCC regulations regarding tower registration or other applicable law.
k)
The need for the requested site and the nature of any existing sites shall be documented as set forth in the application.
l)
Telecommunications towers should be constructed to minimize potential safety hazards. Telecommunications towers shall be constructed so as to meet or exceed the most recent EIA-222 standards and prior to issuance of a building permit the Building Official shall be provided with a Texas registered professional engineer's certification that the tower's design meets or exceeds those standards. Guyed towers shall be located in such a manner that if the structure should fall along its longest dimension, it will remain within property boundaries and avoid habitable structures, public streets, utility lines and other telecommunications towers.
m)
Telecommunications towers and equipment buildings shall be located to minimize their number, height and obtrusiveness to minimize visual impacts on the surrounding area and in accordance with the following requirements:
i.
Ensure that the height of towers and monopoles has the least visual impact and is no greater than required to achieve service area requirements and potential collocation, when visually appropriate.
ii.
Demonstrate that the selected site for a new monopole and tower provides the least visual impact on residential areas and the public rights-of-way. analyze the potential impacts from other vantage points in the area to illustrate that the selected site provides the best opportunity to minimize the visual impact of the proposed facility.
iii.
Site telecommunication facilities to minimize being visually solitary or prominent when viewed from residential areas and the public rights-of- way. the facility should be obscured by vegetation, tree cover, topographic features, and buildings or other structures to the maximum extent practicable.
iv.
Place telecommunication facilities to ensure that historically significant buildings and landscapes are protected. the views of and vistas from architecturally and/or historically significant structures should not be impaired or diminished by the placement of telecommunication facilities.
v.
The commission may recommend a variance and the council may grant a variance to a requirement for telecommunications towers when it is determined that such a variance better accomplishes the city vision than would a strict application of the requirement. such variance shall be no greater than necessary to accomplish those policies.
n)
No signals or lights or illumination shall be permitted on a monopole unless required by the Federal Communications Commission, the Federal Aviation Administration, or the City of Keller.
o)
If any additions, changes, or modifications are to be made to the monopole, the Development Review Committee (DRC) shall have the authority to require proof, through the submission of engineering and structural data, that the addition, change, or modification conforms to structural wind load and all other requirements of the current Building Code adopted by the City of Keller.
p)
Telecommunication tower owners shall submit an annual report of service providers using the tower to the Planning Manager. Telecommunication towers which have not been used for a period of one year shall be removed from a site. The last telecommunication service provider to use a tower shall notify the Planning Manager or designee within thirty (30) days that use of a tower has been discontinued.
q)
Back haul providers shall be identified and have all necessary approvals to operate as such, including holding necessary franchises, permits and certificates and the method of providing back haul, wired or wireless, shall be identified.
r)
The applicant shall fully and accurately complete a questionnaire supplied them by The City of Keller designed to gather information to assist in making a decision regarding the SUP application. In order to assist the staff, the commission and the council in evaluating visual impact the applicant shall submit color photo simulations showing the proposed site of the tower with a photo-realistic representation of the proposed tower as it would appear viewed from the closest residential property and from adjacent roadways.
s)
The tower complies with all ordinances of the City not in conflict with this section.
3)
In addition to the usual application fee, the applicant shall reimburse the City for the actual cost to the City for the services of an engineer should one be required to review the application and provide engineering expertise, up to a maximum of five thousand dollars ($5,000.00).
b.
Antennas mounted on existing structures.
1)
Antennas mounted on buildings.
a)
Roof-mounted telecommunications antennas are allowed on non-residential buildings in all zoning districts without further zoning proceedings, provided a non-whip antenna does not exceed the height of the building by more than ten feet (10') and is screened from view from any adjacent public roadway and provided a whip antenna does not exceed the height of the building by more than fifteen feet (15') and is located no closer than fifteen feet (15') to the perimeter of the building. Prior to installation of a roof- mounted antenna, the department of building inspections shall be provided with an engineer's certification that the roof will support the proposed antenna and associated roof-mounted equipment. Roof-mounted antennas and associated equipment may be screened with enclosures or facades having an appearance that blends with the building on which they are located or by locating them so that they are not visible from an adjacent public roadway. The application process is required for roof-mounted antennas.
b)
Building-mounted telecommunications antennas of the nonwhip type are allowed on nonresidential buildings in all zoning districts without further zoning proceedings, provided the antenna is mounted flush with the exterior of the building so that it projects no more than thirty inches (30") from the surface of the building to which it is attached; and the antenna's appearance is such as to blend with the surrounding surface of the building. This may not be applicable if the extension of the antenna is fully incorporated into a steeple or other component of the building that exceeds thirty inches (30") and will be considered by the DRC on a case-by- case basis.
c)
Associated equipment shall be placed either within the same building or in a separate building which matches the existing building in character and building materials or blends with the landscaping and other surroundings immediately adjacent to the separate building housing the equipment. Associated equipment for roof-mounted antennas may be located on the roof of the building if it is screened from view from any adjacent public roadway.
i.
Telecommunications antennas are allowed without further zoning on existing utility and telecommunications towers and structures exceeding fifty feet (50') in height, provided that the antenna does not exceed the height of the structure by more than ten feet (10') if a non-whip type or fifteen feet (15') if a whip type. Existing utility and telecommunications towers and structures may be rebuilt if necessary to support the load of the new antenna without further zoning if the rebuilt tower or structure is substantially similar in appearance to the existing tower or structure it replaces. Antennas installed on structures in the right-of-way require a license or other authorization from the City of Keller.
ii.
Telecommunications antennas located on existing structures are not subject to the five-thousand-foot separation requirement.
iii.
When an application for a building permit to locate a telecommunications antenna on an existing building or other structure is made, the applicant shall provide (as part of the application) the Department of Community Development with color photo simulations showing the site of the existing structure with a photo-realistic representation of the proposed antenna and the existing structure or any proposed reconstruction of the structure as it would appear viewed from the closest residential property and from adjacent roadways. The applicant shall also submit photographs of the same views showing the current appearance of the site without the proposed antenna.
3.
Telecommunications antennas shall not be constructed or used within the City of Keller without all approvals and permits first having been secured.
4.
Within thirty (30) days of the enactment of this Code and as part of their annual report each January thereafter, providers of personal wireless services, as that term is defined by federal law, operating in the City of Keller shall provide the City with any updates to the above documents.
5.
It shall be an affirmative defense to prosecution for a violation of a provision of this section that compliance with the provision would prohibit or have the effect of prohibiting the provision of personal wireless services as defined by federal law. In addition, any entity that desires to erect or utilize telecommunication facilities that would be prohibited by the ordinances or regulations of the City dealing with zoning and land use may apply for such use and the City Council may, upon a showing that strict application of the regulation would prohibit or have the effect of prohibiting personal wireless service as defined by federal law, vary the subject regulation, consistent with the spirit and intent of this section, to the extent necessary to prevent the prohibition.
J.
Handicap Accessibility. All non-residential buildings and parking areas shall conform to the Americans with Disabilities Act (ADA) of 1991, as may be amended, accessibility guidelines or the Uniform Federal Accessibility Standards.
K.
Minimum Dwelling Unit Area. Minimum dwelling unit areas specified in this Code shall be computed exclusive of breezeways, garages, open porches, carports, and accessory buildings.
L.
Performance Standards.
1.
In all zoning districts, any use indicated in the permitted use list shall conform in operation, location, and construction to the performance standards as administered by the City, County, State, or Federal agencies. All uses, including those, which may be allowed by Planned Development (PD) or Specific Use Permit (SUP), shall conform in operation, location, and construction to appropriate performance standards for noise, smoke, and particulate matter, odorous matter, fire, or explosive hazard material, toxic and noxious matter, vibration, and glare.
2.
All Federal and State pollution, noise, and requirements for toxic waste disposal shall be observed.
M.
Reserved.
N.
Assisted Living Facilities (ALF) (7 or 8 residents) in Single-Family Residential Districts. (Amended by Ord. No. 1809 on September 6, 2016)
1.
General Purpose and Description. Assisted Living Facilities (ALF) in single-family residential areas are intended to promote and encourage alternative and suitable living environments for an aging population and provide another option to maintain family life in Keller. Assisted Living Facilities shall maintain its residential character to blend within residential neighborhoods.
2.
Number of Residents. The regulations listed within this section shall apply to Assisted Living Facilities consisting of more than six (6) residents. The maximum number of residents within an Assisted Living Facility shall be eight (8) persons.
3.
Location of Assisted Living Facilities (ALF).
a.
A Specific Use Permit is required for Assisted Living Facilities consisting of 7 or 8 residents for all properties in any SF zoning districts.
b.
No Assisted Living Facility shall be located within one-half (1/2) mile of another Assisted Living Facility, measured from property line to property line.
4.
Floor Area Requirements.
a.
Minimum house size for an Assisted Living Facility is two thousand four hundred (2,400) square feet.
b.
A minimum bedroom floor area per person shall be required. Floor area requirements shall be measured from interior walls of all rooms, excluding closets, stairs, and thickness of walls, toilet rooms, mechanical rooms, laundry, and corridors.
c.
A minimum of one hundred twenty (120) square feet of interior living space shall be provided per facility resident. Interior living space shall include sleeping space and all other interior space accessible on a regular basis to all facility residents.
d.
A full bathroom with toilet, lavatory, and tub or shower, shall be provided for every bedroom.
5.
New Construction/Redevelopment. All Assisted Living Facilities, either new construction or conversion of an existing single- family residence, shall meet all development standards listed under this section of the UDC.
6.
Building Exterior.
a.
When located in a residential zoning district, all parts of the structure shall be maintained in a character consistent with the residential neighborhood in which it is located in terms of gross floor area, building design and lot coverage.
b.
Assisted Living Facilities shall meet the residential construction standards for residential structures in Section 9.01 (A.1) of the UDC.
c.
Assisted Living Facilities shall meet the height requirements within its respective zoning district.
7.
Landscaping.
a.
A minimum of two (2) large canopy trees with a minimum three-inch (3") caliper shall be planted in the required front yard of all new single-family uses and in the required side yard adjacent to a street of all new single-family uses on corner lots. Existing trees of equal or greater size within the required front yard may be counted toward this requirement.
b.
All Assisted Living Facilities shall comply with the tree preservation requirements for non-residential developments as stated in Section 10.01 (C.3) of the UDC.
8.
Screening/Fencing. Residential fencing shall be required and shall be in accordance with residential fencing standards in Section 9.07 of the UDC.
9.
Accessory Uses.
a.
All accessory structures shall be constructed of materials complimentary to the main structure and shall be subject to the requirements stated in Section 9.06.
b.
Open Space/garden.
c.
No on-site dumpster shall be permitted on the property.
10.
Parking.
a.
Driveways shall be paved with concrete or all-weather surface.
b.
All parking shall be in accordance with the residential parking standards as stated in Section 9.02 of the UDC.
c.
All residential structures shall be returned to its original state prior to its conversion to an Assisted Living Facility if being converted back to a single-family residence.
11.
Signage.
a.
No external (detached monument or attached building) signage shall be allowed. b. No temporary signage shall be allowed.
12.
Site Lighting. Lighting shall be in accordance with the residential lighting and glare standards in Section 9.12(C) of the UDC.
13.
Dumpster. No on-site dumpster shall be permitted on the property.
14.
Fire Protection.
a.
Commercial kitchen are not required. A hood suppression system is required in all kitchens.
b.
Fire suppression system shall be required for all Assisted Living Facilities, regardless of occupancy and/or building square footage. The type of fire suppression system shall be in accordance with International Fire Code (IFC) requirements.
c.
Fire hydrant location and coverage requirements for residential structures as stated in Section 5.16 of the UDC shall be required.
15.
Site Plan Requirement.
a.
All Assisted Living Facilities are required to submit a Site Plan application and meet the application requirements per Section 4.15 of the UDC.
b.
All site plans shall be considered for approval by the City Manager or his/her designee if it complies with best professional practices and meets all applicable requirements of this Code for development.
c.
Any variances would be required to be considered by the Planning and Zoning Commission for recommendation and City Council for approval.
O.
Food Trucks, Food Truck Courts and Mobile Vendors. The purpose of this ordinance is to encourage the operation of Food Trucks in the City of Keller. Though the ordinance does not regulate the use of Food Trucks for private events in residential areas, it does address the use of food trucks, mobile vendors, and food truck courts on private commercial property and on City-owned and/or managed property. To operate in residential areas, food trucks must obtain a state-required fire inspection and Keller Fire Department permit.
Special Event Review Team (SPERT) refers to the group of city employees responsible for reviewing and approving special event permit applications to ensure events are in keeping with city guidelines and policies.
Overnight for the purposes of this section shall mean that sales and/or the distribution of goods shall be limited to the hours between 6:00 a.m. and midnight. A food truck or mobile vendor may set up one (1) hour prior to 6:00 a.m. and must depart by no later than one (1) hour after midnight.
A.
General Operating Requirements:
1.
Food truck or mobile vendors shall obtain a renewable, annual Food Truck and Mobile Vendor Unit permit from the City of Keller before operating in the City.
2.
A fire inspection must be conducted and passed every six (6) months per NFPA 96 (National Fire Protection Association).
3.
Food trucks and mobile vending units may operate for up to eight (8) days per month at the same location unless approved by a Specific Use Permit to operate longer.
4.
All Food Trucks and Mobile Vendor Units shall meet the City of Keller requirements of the most recently adopted applicable International Code Council building codes including the Fire and Electrical Codes.
5.
Electricity shall be from a generator or an electrical outlet. The generator shall be located no less than twenty-five (25) feet from any other food truck, mobile vendor unit, and/or combustibles.
6.
Temporary connections to potable water are prohibited unless specifically designed for food truck hook-ups utilizing food grade water hoses (i.e. Bates Street). Otherwise, water shall be from an internal tank.
7.
A drive-through service is not permitted as part of Food Truck, Mobile Vendor, or Food Truck Court operations.
8.
Food Trucks and Mobile Vendor Units shall be removed from the location on a daily basis and may not be parked overnight unless approved by a SPERT permit. This provision applies to food trucks servicing residential areas as well as all other areas in the City. However, restaurants that also have a food truck service may store their food trucks (when not operating) on the same site as the restaurant as long as the food truck is parked to the side or behind the building and parking requirements for the restaurant can still be met.
9.
Food Trucks and Mobile Vendor Units shall not operate less than ten (10) feet from another food truck, mobile vendor unit or structure.
10.
Food Trucks and Mobile Vendor Units shall not operate:
a)
Within twenty-five (25) feet of any intersection;
b)
Within twenty-five (25) feet of any stop sign, flashing beacon, yield sign, or other traffic control signal located on the side of a roadway;
c)
Within five (5) feet of any public driveway, wheelchair ramp or bicycle ramp;
d)
In any manner that impedes an exit or entrance of an operating building.
e)
In any manner that obscures traffic sight visibility. This includes placement of merchandise, advertising, and/or seating.
f)
Further than one hundred fifty (150) feet from paved fire apparatus access.
11.
All Food Trucks and Mobile Vendor Units shall be equipped with a lidded trash receptacle. The trash receptacle must be placed outside next to the food trucks and mobile vendor units for use by the patrons of the unit. The area, including a 50-foot radius around the Food Trucks and Mobile Vendor Units, shall be kept clean and free from litter, garbage, and debris.
12.
Except as otherwise limited by the City of Keller Code of Ordinances or other City Codes, an individual food truck operator or mobile vendor may utilize outside seating consisting of a portable table and a seating capacity not to exceed eight (8). No furniture or any other objects can be placed in the street, sidewalk, or any right-of-way (ROW).
13.
Owners of any food truck or mobile vendor unit must sign a notarized statement that they acknowledge and accept a minimum amount of $1,000,000 liability insurance, that covers the food truck or mobile vendor, must be maintained at all times and that proof of such insurance coverage can be required to be provided to the City upon three (3) working days' notice to the owner. This requirement may be met with an additional rider on the related automobile insurance.
B.
Food Truck Courts.
1.
Food Truck Courts shall only be permitted by a specific use permit (SUP) in a commercially zoned district (NS, R, C, TC, OTK, KR, LI, and MU-PD). Food Truck Courts shall meet the zoning district regulations in which they are located. Developments that incorporate Food Trucks, Mobile Vendor Units, and/or Food Truck Courts shall be part of an approved Planned Development.
2.
The Certificate of Occupancy shall be obtained and maintained by the Food Truck Court rather than individual vendors.
3.
Water and wastewater hook-ups for all food trucks will be provided and must be utilized. Hose hook-ups to potable water must be of food grade quality.
4.
Food Truck Courts shall provide restrooms and seating for guests.
5.
If the Food Truck Court operates in conjunction with another facility with bathrooms, those bathrooms will suffice for this requirement as long as they meet the current building codes related to capacity for both the facility and the Food Truck Court at full capacity and are accessible during the same operating hours as the Food Truck Court vendors' operating hours.
C.
Provisions for Private Commercial Property (Non-Residential Zoning Districts).
1.
All Food Trucks and Mobile Vendor Units must be located on a parcel which is appropriately zoned for commercial development and use.
2.
Food Trucks and Mobile Vendor Units may not stay overnight.
3.
Food Trucks and Mobile Vendor Units shall be located on an individual private parcel, adjacent to or where, within three hundred (300) feet, an existing permanent business operates in a building with a certificate of occupancy.
4.
Food Trucks and Mobile Vendor Units, including any applicable seating, may operate in parking spaces if the required parking for the center remains in compliance with Keller Unified Development Code Section 9.02 Off-Street Parking and Loading Requirements.
D.
Provisions for City-Owned and/or Managed Property.
1.
A Hold-Harmless Agreement is required to be completed with the City of Keller if the food truck or mobile vendor unit is to be located on City of Keller property.
2.
The City Manager or his/her designee shall have the authority to manage the operation for Food Trucks and Mobile Vendor Units on city-owned and/or managed property. Such property includes but is not limited to Town Hall, Bates Street, Sports Park, Bear Creek Park, and Old Town.
3.
SPERT Permits (Special Permit for Events Review Team) identify the person responsible for each particular event. All Food Trucks and Mobile Vendor Units that are associated with each particular event come under the umbrella of the SPERT permit. Therefore, each vendor does not have to submit an individual permit request for a SPERT event. However, any trucks or vendors participating in a SPERT will need to be registered with the City. (See A.(1) and (2), above.)
E.
Fees. Food Truck and Mobile Vendor permit fees are located in Appendix C - Fee Schedule of the City of Keller Unified Development Code.
(Ord. No. 1891, 6-5-18; Ord. No. 2058, § 3(Exh. A), 4-5-2022; Ord. No. 2104, § 2, 12-6-22; Ord. No. 2225, § 3, 5-20-25)
A.
Purpose. Standards for controlling lighting and glare are set forth to reduce the annoyance and inconvenience to property owners and traffic hazards to motorists. These standards are intended to allow reasonable enjoyment of adjacent and nearby property by their owners and occupants while requiring adequate levels of lighting of parking areas.
B.
Non-Residential Site Lighting and Glare Standards.
1.
A photometric plan is required to be submitted with all site plans for non-residential uses, which are adjacent to residential zoning or use, showing the light intensity within and around the perimeter of the site.
2.
Any use shall be operated so as not to produce obnoxious and intense glare or direct illumination across the bounding property line from a visible source of illumination of such intensity as to create a nuisance or detract from the use or enjoyment of adjacent property. All outside lights shall be made up of a light source and reflector so selected that acting together, the light beam is controlled and not directed across any bounding property line. The allowable maximum intensity measured at the property line of a residential use in a residential district shall be two-tenths (0.2) foot candles. Light poles shall be placed on the site a setback equal to its height from all adjacent residential property. Wall packs shall be designed to match the building in color and shall directly shine down without spill over onto residential properties. Any alternative lighting technique may be considered on a case-by-case basis and approved by City Council at time of site plan review.
3.
All off-street parking areas for non-residential uses, which are used after dark, shall be illuminated beginning one-half (½) hour after sunset and continuing throughout the hours of business operation. If only a portion of a parking area is offered for use after dark, only that part is required to be illuminated in accordance with these standards. However, the portion offered for use shall be clearly designated. Lighting within the parking areas shall meet the following minimum requirements:
a.
Intensity.
1)
Minimum at any point on the parking area surface to be at least six-tenths (0.6) foot candles initial, and at least three-tenths (0.3) foot candles maintained or one-third (⅓) of the average, whichever is greater.
2)
Illumination shall not exceed an average of one (1) foot candle at ground level and shall distribute not more than two-tenths (0.2) foot candles of light upon any adjacent residentially zoned or residentially used property.
b.
A lighting plan shall be submitted with the site plan showing the type, location, and height of fixtures which are adjacent to residential zoning or use. Light poles and fixtures shall be consistent throughout a planned development or property platted as one project. This includes pad sites developed at various times by separate owners within a development.
c.
Light source height shall fit the character of the development as approved by the DRC. Decisions of the DRC may be appealed to the City Council for a final decision. Street lights and other traffic safety lighting are exempt from this standard. Streetlights and other traffic safety lighting are exempt from this standard.
d.
Decorative lighting shall be placed in large parking lots to breakup a vast area of concrete and to provide human scale lighting within the parking lot, building, and adjacent to buildings. The locations will be reviewed at the time of site plan review. Decorative building lighting shall be applicable for a means to break up a massive facade, adjacent to residential zoning or fronting on a thoroughfare.
C.
Residential Lighting and Glare Standards. Residential lighting for security and night recreation use is permitted in all residential districts provided the following requirements are met:
1.
Light source height shall fit the character of the development as approved by the DRC. Decisions of the DRC may be appealed to the City Council for a final decision. Street lights and other traffic safety lighting are exempt from this standard.
2.
Lighting shall not directly shine on adjacent dwellings or produce more than two-tenths (0.2) foot candles of light upon an adjacent property.
D.
Luminaries. Light sources shall be of a down-light type, indirect, diffused, or shielded type luminaries installed and maintained so as to reduce glare effect and consequent interference with use of adjacent properties and boundary streets. Bare bulbs above seventy-five (75) watts and strings of lamps are prohibited except for temporary lighting as provided in this Code.
E.
Special or Temporary Lighting: Low Wattage.
Bare bulbs or strings of lamps are prohibited, except during holidays special lighting shall be permitted for a maximum time period of thirty (30) days for each holiday used. Christmas tree sales lots are considered a temporary holiday use for the purpose of this section.
F.
Permanent Outdoor String Lighting. In the Old Town Keller and Town Center Districts only, the permanent installation of commercial-grade outdoor light strings shall be permitted as landscape accentuation or patio lighting. Such light strings shall be resistant to ultraviolet light exposure and shall have molded bases with weatherproof seals. Only medium base, intermediate base, and candelabra bases are allowed.
(Ord. No. 2104, § 2, 12-6-22)
A shelter for any United States Postal Service (USPS)- required CBUs in districts permitting residential units is required and shall meet the following additional requirements:
A.
Type and Size: The CBU shall be a part of a principal structure (i.e. clubhouse) or a stand alone accessory building (open-air or enclosed) that extends shelter to a minimum of five (5) feet beyond the CBUs' collective footprint. The CBU shall be designed to compliment the development, using similar and complimentary materials and color schemes.
B.
Location: The CBU shall be located on a lot deeded to a homeowners' association or Public Improvement District (PID), whichever is approved by the City Council as the maintenance authority for the subdivision. The CBU, shall be no more than 50 feet from an off-street motorized vehicle parking lot as measured from curb to open-air building footprint or enclosed building entrance.
C.
Parking: In addition to satisfying the minimum and maximum off-street Motorized Vehicle Parking space requirements specified by Section 9.02 for other uses on the lot, the following minimum and maximum off-street short-term (marked and signed for 10-minute maximum) motorized vehicle parking space requirements must also be met:
(Ord. No. 2104, § 2, 12-6-22)
Figure 1 - Lot Width
Figure 2 - Lot Area & Depth
Figure 3 - Yards
Figure 4 - Corner Lots
Figure 5 - Front Yard Where Zoning Changes in a Block
Figure 6 - Double Frontage Lots
Figure 7 - Floor Area Ratios
Figure 8 - Methods of Measuring Front Yards
Figure 9 - Measuring Building Height
Figure 10 - Sign Projections
Figure 11 - Attached Signs Which are Not Permitted
Figure 12 - Monument Sign Requirements
Figure 13 - Off-Street Maneuvering For Loading Area
Figure 14 - 90° Layout
Figure 15 - 45° Layout With Two-Way Traffic
Figure 16 - 60° Layout With Two-Way Traffic
Figure 17 - 45° Layout With One-Way Traffic
Figure 18 - 60° Layout With One-Way Traffic
Figure 19 - Thoroughfare Fencing Detail
Figure 20 - Pedestrian Access for Typical Waste Container Screening Closure
Figure 21 - Typical Waste Container Screening Gate
Figure 22 - Fence and Sight Requirements for Corner Lots
Figure 23 - J-Swing Garage
Figure 24 - Side Entry Garage
Figure 25 Sandwich Board Style Sign
Figure 26 Square Sign Measurement
Figure 27 Irregular Sign Measurement
Figure 28 Letter Sign Measurement
Figure 29 Angle between Sign faces
(Ord. No. 1891, 6-5-2018; Ord. No. 2104, § 2, 12-6-22)
DEVELOPMENT STANDARDS1
Editor's note—Ord. No. 2104, adopted Dec. 6, 2022, renumbered and reorganized Article Eight, §§ 8.06—8.18 as Article Nine, §§ 9.01—9.03 and 9.04—9.14. Former Article Nine, §§ 9.01—9.13 pertained to Appendices and said provisions have been renumbered and reorganized into Article Eleven, §§ 11.01—11.03. Historical Notations have been retained.
A.
Exterior Construction Requirements.
1.
Residential Construction Standards.
a.
SF-36 through 2F: All residential buildings and structures located in the residential districts SF-36, SF-30 through SF-8.4, and 2F shall be of exterior fire resistant construction having at least eighty percent (80%) of the total exterior walls above grade level and below the first floor plate line, excluding doors and windows, consisting of brick, stone, stucco, or material of equal characteristics as approved by the City in accordance with the City's building code and fire prevention code. Exterior Insulated Finishing System (EIFS) shall not be permitted. Strict adherence to this rule shall not be such as to prevent architectural creativity.
b.
Multi-family (MF): All multi-family residential buildings shall meet the requirements as outlined within the MF district.
c.
Manufactured homes shall meet all the above requirements for single-family residential construction standards.
d.
Mobile Homes & Temporary Buildings shall adhere to the following standards:
1)
Mobile homes shall be permitted only in a mobile home park and are exempt from the above construction requirements.
2)
All other temporary buildings for dwelling or storage purposes may be permitted by an SUP with approval of the City Council.
3)
Temporary Buildings for Keller Independent School District for classroom or other activities will be allowed with a site plan review by staff and a permit from the Community Development Department and shall be exempt from the construction standards requirements. All applicable building codes above shall be met for these structures.
e.
Accessory buildings shall adhere to the following standards:
1)
Accessory buildings one hundred twenty (120) square feet or less are excluded from the construction standards for residential construction.
2)
Accessory buildings, larger than one hundred twenty (120) square feet up to two hundred (200) square feet may be constructed using lightweight masonry siding and/or lightweight masonry soffit boards as defined in the Definitions section of this Code and/or manufactured pre-finished wood siding, in lieu of other masonry construction materials.
3)
All accessory buildings, larger than two hundred (200) square feet, in residential districts shall meet all requirements of this Code.
4)
In Single Family-Low Density zoning districts (SF-36), accessory buildings of five hundred (500) square feet or less may be constructed using lightweight masonry siding and/or lightweight masonry soffit boards as defined in the Definitions section of this Code and/or manufactured pre-finished wood siding, in lieu of other masonry construction materials.
5)
The use of exposed metal exterior walls and finishes shall be allowed only for barns and agricultural structures in the SF-36 zoning district. The use of storage containers shall not be allowed.
f.
Detached carports shall adhere to the following standards:
1)
In all residential zoning districts (SF - 36, SF - 30, SF - 25, SF - 20, SF - 15, SF -12, SF - 10, and SF - 8.4), a Specific Use Permit (SUP) is required. The construction of one carport per lot is permitted; a building permit is required for the construction of a carport regardless of size. Columns and roof structure must be compatible both in design and materials with the main structure. Detached carports shall be located at the rear of the property and observe all building setback requirements.
g.
Exceptions to the construction requirements may be considered by the City Council, as applicable, based only on the following:
1)
Architectural design and creativity.
2)
Compatibility with surrounding developed properties.
3)
Architectural variances may be considered for, but not limited to, Queen Anne, Victorian, English Tudor, Italian Villa, or Log designs.
2.
Non-Residential Construction Standards.
a.
All non-residential uses shall be of exterior fire-resistant construction in accordance with the City's building code and fire prevention code.
b.
Building facades, excluding doors, windows and glass wall construction, shall be constructed with a minimum of seventy-five percent (75%) of stone or brick. Portland cement stucco shall be allowed as noted in "c" below. Strict adherence to this rule shall not be such as to prevent architectural creativity. Other materials or a combination of brick, stone, stucco and other materials may be considered based on architectural creativity at the time of site plan review by the City Council.
c.
The use of three-quarter inch (3/4") Portland cement stucco with a minimum fire rating of one hour shall be permitted provided the area of the Portland cement stucco does not exceed fifty percent (50%) of the total façade area excluding doors, windows and glass wall construction.
d.
The use of textured concrete blocks (quick brick), colored split-face blocks, or any other wall surface material shall be noted on the site plan elevations and may be approved by the City Council at the time of site plan review.
e.
Exposed concrete, concrete block, or metal finishes shall not be permitted.
f.
The use of exposed metal exterior walls and finishes may be allowed, in the Light Industrial (LI) zoning district if approved by Specific Use Permit (SUP). Exposed metal exterior walls fronting or siding on public streets shall be prohibited. When metal exterior finishes are permitted, the use of corrugated panels is prohibited; profiled panels, deep ribbed panels and concealed fastener systems are permitted and shall have a finish of a permanent material such as a baked or enamel finish or painted to the wall manufacturer's standards. The use of galvanized, corrugated aluminum coated, zinc-aluminum coated, or unpainted exterior metal finish is prohibited. Metal exterior walls shall be compatible in color with the principal buildings and existing surrounding structures.
g.
Roof material shall be asphalt composition, standing seam metal, stone, clay or concrete roofing tile. The roof material shall be shown on the site plan and any future changes to the roof material or color shall be approved by an amended site plan. Adjacent buildings within a development shall have similar roof materials to provide for compatibility among individual buildings. Pad sites within a development shall have consistent roof material and color to create a consistent theme for the development.
h.
Carports constructed entirely out of metal may be permitted if architectural metal is proposed. Carports shall be shown on the site plan and shall be compatible in design and material with the main structure. Carports shall be located on the side or rear of the property and shall observe all building setback lines.
i.
Temporary Buildings shall adhere to the following:
1)
Temporary buildings to be used for field office or other construction purposes may be permitted for a specific period of time in accordance with a permit issued by the Community Development Department and subject to periodic renewal for cause shown. Temporary buildings are exempt from the construction standards requirements. Upon completion or abandonment of construction or expiration of permit, such field offices and building shall be removed at the satisfaction of the Community Development Department.
2)
Temporary Buildings for Keller Independent School District for classroom or other activities will be allowed with a site plan review by the Development Review Committee and a permit from the Community Development Department.
3)
All other temporary buildings shall be allowed only with a Specific Use Permit approved by the City Council.
j.
Building Colors and Exterior Light Effects for Non-Residential Buildings
1)
Building colors shall be compatible with one another. Preferred colors of buildings and accessory structures are earth tones (red, brown, tan, off-white, green). The use of florescent paint, florescent colors and the extensive use of bright colors on buildings as commercial identity or signage shall not be permitted.
2)
Service doors, down spouts, utility boxes and panels, and other similar features on the buildings shall be painted to match the primary masonry material on the building.
3)
The use of lighted stripes, exposed neon tubular lights or similar material on buildings or accessory structures shall not be permitted.
4)
Back-lit canopies or awnings shall not be allowed. Hard plastic awnings are prohibited. Suspended metal, masonry and fabric awnings are allowed.
B.
Design Standards for Non-Residential Buildings.
1.
Purpose of Design Review. The standards for architecture within the City of Keller are intended to reflect its Master Plan goal that new development will be "high quality" and "an aesthetic asset to the community." To ensure a consistent appearance of development, certain criteria are addressed. To create a positive overall development character, all structures within a development shall share an attractive and uniform appearance. Key issues for all buildings within a development include:
a.
A unified design theme.
b.
A standard of high quality construction and consistency in appearance.
c.
Respect for the contextual setting of the development within its district.
2.
Review and approval of all architectural design shall be conducted by the Development Review Committee as part of the development review process. The submission of all building elevations, and material/color samples as determined necessary to evaluate compliance is required. A detailed site plan as outlined in this Code shall be submitted for each use in the development. The Planning Manager or the City's consulting architects may also require any other reasonable and pertinent information necessary for design review. Design review of non-residential projects is required to ensure that community- wide development is in conformance with design guidelines for the Master Plan and the Unified Development Code.
C.
Design Standards and Site Layout.
1.
The following concepts apply to non-residential development site design review process:
a.
Formal Streetscape along Street Frontages
b.
Compatible Architectural Styles
c.
Create Street Edge with Architecture
d.
Shared Access - Reduce Curb Cuts
e.
Low Monument Signage
f.
Parking to Side and/or Rear of Building Preferred
g.
Hip or Mansard Roof
h.
Rear and Side Yard Landscaping Required
2.
Site layout shall reinforce street edge and create pedestrian-scaled open spaces. Large parking lots in front of buildings, along the street frontage, shall be avoided when possible.
3.
Building fronts and entries shall be oriented toward streets, unless otherwise approved. If a building sides to a street, the side façade shall be treated in the same architectural style and material as the front façade. Service entrances fronting on streets are prohibited.
4.
Buildings shall have a recognizable main entry, which should relate directly to the primary street frontage. Entry points may be indicated by a change of materials, roof or canopy features, a variation in wall planes, or other acceptable means which relate to pedestrian scale.
5.
All buildings shall have horizontal and vertical façade articulations every fifty feet (50'), which may be expressed as offset wall planes, pier and column effects, or other acceptable means.
6.
Buildings with façades longer than fifty feet (50') shall have their façades broken up into smaller areas through the use of varying facades setbacks, arcades, awnings, canopies, architectural features such as plazas, columns, or other acceptable means.
7.
Retail uses and buildings shall have as much storefront glass on the ground floor as possible so as to enliven the façade and open it up to pedestrian involvement. For uses over ten thousand (10,000) square feet with expansive facade areas without windows, an expression of windows with elements such as display windows or opaque windows with canopies and awnings may be considered.
8.
Rooflines shall be interrupted with gables or other architectural elements to break up the building profile.
9.
At the intersection of the facade and roof planes, there shall be a projecting cornice element of brick, or cast stone. Cornice detailing shall be added around the entire building.
10.
Windows along streets shall be equally spaced with a specific rhythm and shall not create long areas of flat solid spaces along streets. Varying window size and height based on the interior functions is discouraged.
11.
All façades of a building that are visible from a street, adjacent developments, public open spaces or parking lot, shall have the same architectural features as the front facade. This shall not only be limited to the same roof treatment, but shall also include building materials, façade articulation and window treatment.
12.
All buildings, at minimum, shall carry the same roof treatment around the entire building including the rear side.
13.
The design of visible roof structures shall be of shed, hip, gambrel, mansard and gable styles. Roofs should be of such height, bulk and mass as to appear structural even when the design is non-structural. Flat roofs may be considered when incorporated with acceptable design or mansard roof. Mansard roofs shall have a pitch of not less than 1:1.
14.
Roof top mechanical/electrical equipment shall be screened with an extension of the facade or a compatible roof design such as mansard roof. The screening of equipment with metal screening or other material shall not be allowed.
15.
All non-residential buildings shall have window head and sill details which, utilizes either projecting elements or materials of a contrasting color and texture, which will highlight the window treatment.
16.
Elements of franchised architecture may be permitted, but only if they complement or are otherwise compatible with adjacent development.
17.
Outside storage is prohibited unless approved as part of a Site Plan. This includes vending machines, ice machines, and similar uses.
18.
Uses utilizing shopping carts may have cart returns in parking lots. This area shall be contained with 6" curbs. Metal corrals are not allowed.
D.
Service Area Design and Requirements.
1.
To reinforce the professional image of each development site, all service areas and mechanical equipment, noise and odors shall be located at the rear of the property and screened from views using walls, berms, shrubs, trees and/or a combination of materials.
2.
Service areas and waste containers (including fryer grease recycling bin or vessel when applicable) and trash compactors shall be located at the rear of the property and shall not face a street. The waste containers and trash compactors shall be screened with a masonry wall compatible in material and color with the primary building. Door frames made of tubular steel shall be utilized for waste container and trash compactor screening wall gate. Door frames and door covering shall be able to support and function for the intended use and shall be approved during site plan approval; however, no wood is permitted. A pedestrian access point shall be provided for access to a waste container and trash compactor enclosure to facilitate access without opening the gate (see Section 9.14 - Figure 20 and 21).
3.
Loading docks, truck service entrances, service entrances/overhead doors for automobile/boat oriented uses or any use requiring overhead service doors shall not face a street. These areas shall be designed to blend into the site and have low visual impact.
4.
Unless otherwise noted, the screening requirement shall be masonry screening. Any alternatives shall be shown on the site plan and be specifically approved based on the visual impact for the use. Openings in the masonry screening wall with non-wood louvers or ornamental metal or tubular steel open fencing, along with live screening on the outside of the louvers or open fencing, may be considered at time of site plan approval to allow for air flow to air conditioning units and other ground mounted mechanical equipment. The following uses shall be screened:
a.
Trash compactors and waste containers (including fryer grease recycling bin or vessel when applicable)
b.
Stored equipment or manufactured items
c.
Storage tanks and pumps
d.
TV, microwave, radio and cell phone antennas
e.
Above ground irrigation controllers and backflow preventers (may be live screening with a minimum two (2) foot horizontal clearance.)
f.
Electrical transformers, communications, cable, and other control boxes (may be live screening)
g.
Air-conditioning units (see Section 9.01D(4) above)
h.
Loading and truck service areas
i.
Shipping and receiving dock doors must blend with the architecture of the building they serve
j.
Other Ground-mounted mechanical equipment (see Section 9.01 D (4) above)
k.
Sound equipment
l.
Sources of odor must be contained
Reference: Sections 9.07, 9.08, and 9.09 for guidelines on screening
(Ord. No. 1891, 6-5-18; Ord. No. 1991, § 2(Exh. A), 11-17-20; Ord. No. 2104, § 2, 12-6-22)
A.
Purpose. To secure safety from fire, panic, and other dangers; to lessen congestion on public streets; to facilitate the adequate provision of transportation; to conserve the value of buildings; and to encourage the most appropriate use of land. Minimum off-street parking and loading shall be provided as set forth in the following schedules and provisions. Parking for uses not provided here-in shall be considered by the DRC based on studies produced by the Institute of Transportation Engineers, Traffic Impact Analyses provided and professional observation.
B.
General Provisions for Off-Street Parking.
1.
All off-street parking shall be provided on the same site as the use it is to serve.
2.
Unless otherwise noted in this Code, all parking spaces, driveway approaches, driveways, and drive aisles shall be located on a paved concrete, asphalt or alternative surface. Permissible alternative surfaces are concrete, brick, or natural stone pavers on compacted sub-grade and base sufficient to support the vehicle's Gross Vehicle Weight Rating. The paved parking surface area must encompass the entire footprint of the vehicle.
3.
No parking space, garage, carport, or other automobile storage space shall be used for the parking or storage of any heavy load vehicle (see Article Three - Definitions for Heavy Load Vehicle).
4.
No vehicle, including boats, camper trailers, trailers, or other similar vehicle shall be parked within the street rights-of-ways of major thoroughfares as shown on the Thoroughfare Plan, including state controlled roads.
5.
Parked vehicles on private property shall not encroach on any right-of-way, sidewalks, or parkways (unpaved portion of rights-of-way).
6.
In all zoning districts, parking and loading areas shall not be used for the sale, repair, storage, dismantling or servicing of vehicles or equipment; or for the storage of materials or supplies, or for any other use in conflict with the parking and loading areas (i.e., advertising or open storage of materials). A maximum of two (2) vehicles, owned by the property owner or with the permission of the property owner, may be displayed for the purpose of sale, lease, or similar purposes on private property.
C.
Residential Districts. In all subdivisions platted after December 15, 1992, garages shall not face or be in view from a public street unless allowed with a Planned Development zoning district or the following provisions of this Code.
1.
J-Swing garages are permitted in all zoning districts. The maximum garage area, including any accessory uses associated with the garage, shall not exceed seven hundred (700) square feet.
2.
Side entry garages where lot frontage is only to one street (not a corner lot) shall have a minimum of twenty-five feet (25') from the door face of the garage to the side or rear property line for maneuvering.
3.
Side entry garages on a corner lot where the driveway is from the side street shall have a minimum of twenty feet (20') from the door face of the garage to the side property line.
4.
A detached front facing garage located behind the main structure is permitted. The garage door(s) exposure to the street shall not exceed one hundred forty-four square feet (144').
5.
An attached front-facing garage is permitted if located a minimum one-hundred feet (100') behind the property line or right-of-way, whichever is closer. The garage door(s) exposure to the street shall not exceed one hundred forty-four square feet (144 S.F.). Similarly, front-facing garages with a maximum of seventy-two square feet (72 S.F.) of garage door exposure to the street are permitted if located a minimum of forty-five feet (45') behind the property line or right-of-way, whichever is closer.
6.
An attached front facing garage is permitted with a porte-cochère design that shields a part of the garage door(s) exposure.
D.
Non-Residential and MF Districts - Special Off-Street Parking Provisions.
1.
All off-street parking, maneuvering, loading, and storage areas shall be paved to a minimum of six inches (6") of reinforced concrete over six inches (6") cement-limed or crushed limestone stabilized base compacted to ninety-five percent (95%) density, or an alternative section approved by the Director of Public Works. Approaches shall be paved to a minimum of seven inches (7") of reinforced concrete over six inches (6") cement- limed or crushed limestone stabilized base compacted to nine-five percent (95%) density.
2.
Each standard off-street surface parking space size shall be in accordance with the City design standards (see Section 9.14 - Illustrations for parking design standards).
3.
All parking and loading spaces, and vehicle sales areas on private property shall have a vehicle stopping device installed so as to prevent parking of motor vehicles in any required landscaped areas, to prevent vehicles from hitting buildings, and to prevent any parked vehicle from overhanging a public right-of-way line, or public sidewalk. Parking shall not be permitted to encroach upon the public right-of-way in any case. All vehicle maneuvering shall take place on-site. No public right-of-way shall be used for parking, backing or maneuvering into or from a parking space.
4.
Handicap parking space(s) shall be provided according to the City's adopted Building Code and be in addition to the minimum parking requirements.
5.
Storage of motor vehicles, other than the property owners' vehicles, in any zoning district is prohibited. Motor vehicles sales lots or any lot/area used for such a purpose shall be allowed only by approval of a Specific Use Permit (SUP).
6.
To ensure that all requirements set forth in this section are carried forward, it will be the responsibility of the owner of the property to adequately maintain the facility and comply with this Code. All parking areas shall be kept free of trash, debris, vehicle repair operation or display and advertising uses. The parking area layout, location and number of provided spaces shall not change without approval of the Community Development Department.
7.
Off-street stacking requirements for drive-through facilities.
a.
A stacking space shall be an area on a site measuring eight feet (8') by twenty feet (20') with direct forward access to a service window or station of a drive-through facility which does not constitute space for any other circulation driveway, parking space, or maneuvering area. The following stacking requirements may be used as a guide but may be modified at the time of site plan review based on use and design of this facility:
1)
For financial institutions with drive-through facilities, each teller window or station, human or mechanical five (5) stacking spaces.
2)
For each service window of a drive-through restaurant, a minimum of six (6) spaces.
3)
For kiosks, a minimum of two (2) stacking spaces for each service window.
4)
For each full service car wash, vacuum or gas pump lane, a minimum of seven (7) stacking spaces.
5)
For each self-service (drive-through/automated) wash bay, a minimum of three (3) stacking spaces in addition to the wash bay.
6)
For each self-service (open bay), a minimum of two (2) stacking spaces in addition to the wash bay.
7)
For automobile quick lube facilities, a minimum of three (3) stacking spaces in addition to the service bay.
E.
Off-Street Loading Spaces - All Districts.
1.
All retail, commercial, and industrial structures, on an as needed basis, shall provide and maintain an off-street area for the loading and unloading of merchandise and goods at a ratio of at least one (1) space for the first twenty thousand (20,000) square feet of gross floor area and one (1) space for each additional twenty thousand (20,000) square feet of gross floor area or fraction thereof. A loading space shall consist of an area of a minimum of twelve (12) by thirty (30) feet. All drives and approaches shall provide adequate space and clearances to allow for the maneuvering of trucks off-street. Each site shall provide a designated maneuvering area for trucks. These requirements may be modified based on use at the time of site plan review.
2.
All loading areas and service bay doors shall be designed where loading doors or docking areas are not directly visible from streets. These areas shall be fully screened with a screening wall. Live landscaping may be allowed based on use or location.
3.
All loading areas shall be designed to minimize the impact on adjacent uses. If loading areas are adjacent to residential (single-family, duplex, or multi-family) developments or zoning districts, loading and unloading hours shall be restricted to 6:00 A.M. to 10:00 P.M.
4.
Garage doors or service bays for auto/boat motor vehicle related uses shall not face a street.
F.
Parking Access from a Public Street - All Districts.
1.
In the approval of a Detailed Site Plan, consideration shall be given to providing entrance/exit drives which extend into the site to provide adequate queuing of vehicles on the site. If a deceleration lane is not provided, a minimum distance of 100' from a major thoroughfare must be included as shown on the Thoroughfare Plan.
2.
In all Districts (except all Single-Family and Townhome Zoning Districts) building plans shall provide for entrance/exit drive(s) appropriately designed and located to minimize traffic congestion or conflict within the site and with adjoining public streets as approved by the City.
a.
Based upon analysis by the City, if projected volumes of traffic entering or leaving a development are likely to interfere with the projected peak traffic flow volumes on adjoining streets, additional right-of-way and paving in the form of a deceleration lane or turn lane may be required of a developer in order to reduce such interference.
b.
The determination of additional right-of-way or paving requirements shall be made at the time the final site plan is submitted for approval.
3.
Vehicular access to non-residential uses shall not be permitted from alleys serving residential areas.
G.
Parking Requirements Based on Use. At the time any building or structure in any district is erected, structurally altered, or changes use needing additional parking, there shall be provided off street parking spaces in accordance with the following requirements. Any parking space(s) necessary to meet the requirements of the Americans with Disabilities Act (ADA) do not count toward the fulfillment of the parking requirements of this Code. The below requirements may be modified at the time of site plan review on a case by case basis.
1.
Assisted Living - One (1) space per two (2) units.
2.
Art gallery/museum - Three (3) spaces per one thousand (1000) square feet of gross floor area.
3.
Automobile parts sales (indoors) - One (1) space per four hundred (400) square feet of floor area.
4.
Automobile sales or service - One (1) space per five hundred (500) square feet of floor area.
5.
Bank, Savings and Loan, or similar institution - One (1) space per three hundred (300) square feet of gross floor area.
6.
Bed and breakfast facility - One (1) space per guest room in addition to the requirements for a normal residential use.
7.
Bus or truck repair, parking, storage area, or garage - One (1) space for each five hundred (500) square feet of floor area or repair garage with a minimum of five (5) spaces.
8.
Business or professional office -
Gross Floor Area (sq. ft.) Parking Requirements
• less than 10,000 sq. ft. 1 per 330 sq. ft.
• 10,000 to 75,000 sq. ft. 1 per 400 sq. ft.
• 75,000 sq. ft. & over 1 per 450 sq. ft.
9.
Car wash (self-service) - One (1) space per washing bay and one (1) space per vacuum cleaner bay.
10.
Car wash (full-service) - One (1) space per one hundred fifty (150) square feet of floor area.
11.
Church, rectory, or other place of worship - One (1) parking space for each three (3) seats in the main auditorium.
12.
College or University - Four (4) spaces per one-thousand (1000) square feet of gross floor area.
13.
Community Center- Three (3) spaces per one-thousand (1000) square feet of gross floor area.
14.
Commercial Amusement (indoor) - Three (3) spaces per one-thousand (1000) square feet of gross floor area, or as follows:
a.
Billiard - Five (5) spaces per thousand (1000) square feet of gross floor area. b. Bowling - Four (4) spaces for each alley or lane.
c.
Bingo - One (1) space for three (3) seats (design capacity) or one (1) per one hundred (100) square feet of total floor area, whichever is greater.
d.
Gymnasium - Five (5) spaces per thousand (1000) square feet of gross floor area.
e.
Indoor jogging - Five (5) spaces per thousand (1000) square feet of gross floor area.
f.
Indoor Tennis - Three (3) spaces for each court.
g.
Movie theater - One (1) for every three (3) seats.
h.
Raquetball - Two (2) spaces for each court
i.
Roller skating or Ice skating rink Five (5) spaces per thousand (1000) square feet of gross floor area.
j.
Soccer complex - Thirty eight (38) spaces per field.
k.
Swimming pool - Five (5) spaces per thousand (1000) square feet of gross floor area.
l.
Weight lifting - Five (5) spaces per thousand (1000) square feet of gross floor area.
m.
All areas for subsidiary uses not listed above or in other parts of this section (such as restaurants, office, etc.), shall be calculated in with the minimum specified for those individual uses.
15.
Commercial amusement (outdoor) - Ten (10) spaces plus one (1) space for each five hundred (500) square feet over five thousand (5000) square feet or as follows:.
a.
Golf course - Twelve (12) spaces per hole.
b.
Water park - Seventy eight (78) spaces for each acre.
16.
Commercial wedding/event center - One (1) space for three (3) persons (design capacity).
17.
Condominium - One and a half (1.5) space per unit.
18.
Convenience store (with fuel pumps) - One (1) space per one hundred forty (140) square feet of floor area plus one (1) space for each three (3) gasoline pump units (a unit may have up to six (6) nozzles for gasoline disbursement). Spaces in pump areas qualify as spaces for the parking requirement.
19.
Convenience store (without fuel pumps) - One (1) space per three hundred (300) square feet of gross floor area.
20.
Convention center - One (1) space for three (3) persons (design capacity).
21.
Copy shop - One (1) space per three hundred thirty (330) square feet of floor area.
22.
Child Care - One (1) space for four (4) students (design capacity).
23.
Dry cleaner - One (1) space per three hundred (300) square feet of floor area.
24.
Dance Hall, Aerobics, Assembly or Exhibition Hall Without Fixed Seats - One (1) space for three (3) persons (design capacity).
25.
Flea Market - One (1) space for each five hundred (500) square feet of site area. Dirt or gravel parking lots are not permitted.
26.
Fraternity, Sorority, or Dormitory - One (1) parking space for each two (2) beds on campus, and one and one-half (1½) spaces for each two beds in off campus projects.
27.
Furniture or Appliance Store, Wholesale Establishments, Clothing or Shoe Repair or Service - Two (2) parking spaces plus one (1) additional parking space for each three hundred (300) square feet of floor area over one thousand (1,000).
28.
Hardware Store - Two (2) parking spaces plus one (1) additional parking space for each five hundred (500) square feet of floor area over one thousand (1,000).
29.
Hospital - Two and a half (2.5) spaces per one thousand (1,000) square feet of gross floor area.
30.
Hotel - One (1) per room for the first two hundred fifty (250) rooms and .85 space per room for each room over two hundred fifty (250), plus one (1) space per five (5) restaurant/lounge area seats, plus one (1) space per three hundred (300) square feet of meeting/conference areas.
31.
Industrial Uses - One (1) space for each one thousand (1,000) square feet of gross floor area.
32.
Library - Three and a half (3.5) spaces per thousand (1,000) square feet of gross floor area.
33.
Lodge or Fraternal Organization - One (1) space per two hundred (200) square feet of gross floor area.
34.
Machinery or Heavy Equipment Sales - One (1) space per five hundred (500) square feet of gross floor area.
35.
Manufacturing - One and one-third (1.3) spaces per one thousand (1,000) square feet of gross floor area.
36.
Medical or Dental Office - One (1) space per two hundred (200) square feet of gross floor area. Facilities over 100,000 square feet shall use the parking standards set forth for hospitals.
37.
Mini-Warehouse - One (1) space per five thousand (5,000) square feet of gross storage area plus one (1) space per three hundred (300) square feet of gross floor area.
38.
Mobile Home or Mobile Home Park - Two (2) spaces for each mobile home plus additional spaces as required herein for accessory uses.
39.
Mortuary or Funeral Home - One (1) parking space for each two hundred (200) square feet of floor space in slumber rooms, parlors or individual funeral service rooms.
40.
Motel - One (1) per room for the first two hundred fifty (250) rooms and .85 space per room for each room over two hundred fifty (250), plus one (1) space per three hundred (300) square feet of meeting/conference/business office areas.
41.
Motor-Vehicle Salesroom and Used Car Lots - One (1) parking space for each five hundred (500) square feet of sales floor for indoor uses, or one (1) parking space for each one thousand (1,000) square feet of lot area for storage, sales and parking area, whichever is greater.
42.
Multi-family - One (1) space per each efficiency or one (1) bedroom unit; One and a half (1.5) spaces per each two (2) bedroom unit; Two (2) spaces per each three (3) bedroom unit; half (0.5) a space per each additional bedroom
43.
Nursing Home - One (1) space per thousand (1000) square feet of gross floor area.
44.
Office, general - One (1) space per three hundred fifty (350) square feet of gross floor area.
45.
Office, government - One (1) space per two hundred fifty (250) square feet of gross floor area.
46.
Pharmacy without drive-thru - One (1) space per three hundred fifty (350) square feet of gross floor area.
47.
Pharmacy with drive-thru - One (1) space per four hundred fifty (450) square feet of gross floor area.
48.
Places of Public Assembly Not Listed - One (1) space for each three (3) seats provided.
49.
Race track, horses or dogs - One (1) for each three (3) seats plus one (1) space for each employee. Stable areas shall provide storage areas for horse trailers.
50.
Retail or Personal Service Establishment, Except as Otherwise Specified Herein - One (1) space per two hundred (200) square feet of gross floor area.
51.
Retirement Home - One and a third (1.3) space for each dwelling unit.
52.
Restaurant (Full-Service), Private Club, Night Club, or Cafe - One (1) parking space for each one hundred fifty (150) square feet of gross floor area.
53.
Restaurant (Fast-food or Drive-In Type) - One (1) parking space for each one hundred (100) square feet of seating and waiting area.
54.
Rooming or Boarding House - One (1) parking space for each sleeping room.
55.
Sanitarium, Convalescent Home, Home for the Aged or Similar Institution - One (1) parking space for each five (5) beds.
56.
School, Elementary (grades K-6) - One (1) parking space for each five (5) students (design capacity).
57.
School, Secondary, or Middle (grades 7-8) - One (1) parking space for each ten (10) students (design capacity).
58.
School, High School (grades 9-12) - One space for each two (2) students, faculty and staff (design capacity).
59.
Supermarket - Three and eight tenths (3.8) spaces per thousand (1,000) gross floor area.
60.
Theater, Indoor or Outdoor (live performances), Sports Arena, Stadium, Gymnasium or Auditorium (except school auditorium) - One (1) parking space for each three (3) seats or bench seating spaces.
61.
Townhouse, Patio Home, or Single Family Residential - Two (2) spaces per dwelling unit.
62.
Truck stops - One (1) truck parking space for each ten thousand (10,000) square feet of site area plus one (1) vehicle parking space per two hundred (200) square feet of building area.
63.
Veterinarian Clinic - One and three quarters (1.75) space per thousand (1000) square feet of gross floor space.
64.
Warehouse or Wholesale Type Uses - One (1) space for two thousand (2,000) square feet of gross floor area.
H.
Rules for Computing Number of Parking Spaces. In computing the number of parking spaces required for each of the above uses, the following rules shall govern:
1.
"Floor Area" shall mean the gross floor area of the specific use.
2.
Where fractional spaces result, the parking spaces required shall be constructed up to the next whole number.
3.
The parking space requirements for a new or unlisted use not specifically mentioned herein shall be the same as required for a use of similar nature. If the proposed use is not similar to any of the uses listed herein, a determination shall be made by the Planning Manager in accordance with the requirements for the most closely related use specified in this section.
4.
For buildings that have mixed uses within the same structure (such as retail and office), the parking requirement shall be calculated for the most intensive use. In cases where the design of the interior of the structure is not practical for alteration, the parking requirement may be calculated for each use within a structure for buildings over 40,000 square feet.
5.
In the case of mixed uses (different buildings) in the TC and PD Districts, only the parking spaces required shall equal the sum of the requirements of the various uses computed separately. Up to thirty percent (30%) of the parking spaces required for a theater, stadium or other place of evening entertainment (after 6:00 P.M.), or for a church, may be provided and used jointly by banks, offices, and similar uses not normally open, used, or operated during evening. Shared parking must be on the same parking lot. Reduction due to shared parking shall be determined by the Planning Manager. To assure retention of the shared parking spaces, the parties concerned shall properly draw and execute a document expressing the same and shall file this agreement with the application for zoning variance.
I.
Location of Parking Spaces. All parking spaces required herein shall be located on the same lot with the building or use served, except as follows:
1.
Where an increase in the number of spaces is required by a change or enlargement of use or where such spaces are provided collectively or used jointly by two (2) or more buildings or establishments, the required spaces may be located on a remote lot if approved at the time of site plan review.
2.
On-street parking as approved on a site plan.
3.
Public parking spaces as provided by the City of Keller.
J.
Use of Required Parking Spaces, Non-Residential Districts. Off-street parking and loading spaces shall be used only for their respective purposes and shall not be used for storage, sales, or display of boats, trailers, campers, motor vehicles or other goods, materials, products for sale, advertising or other purposes. Temporary displays as part of a special event may be approved by the Community Development Department.
(Ord. No. 1979, § 2(Exh. A), 8-18-20; Ord. No. 1986, § 2(Exh. A), 9-15-20; Ord. No. 1991, § 2(Exh. A), 11-17-20; Ord. No. 2104, § 1, 12-6-22)
A.
Purpose. Landscaping is accepted as adding value to property and is in the general welfare to the City. Therefore, landscaping is hereafter required of all new development.
B.
Scope and Enforcement. The standards and criteria contained within this section are deemed to be minimum standards and shall apply to all new developments and existing developments that require building permits for additions and alterations. Additionally, any use requiring a Specific Use Permit or a Planned Development zoning designation must comply with these landscape standards. The provisions of this section shall be administered and enforced by the Planning Manager or his/her designee.
C.
Permits. No permits shall be issued for any non-residential and multi-family development until a detailed landscape plan is submitted as part of a Site Plan as required in Section 4.15 - Non- Single Family Residential Construction Process. Prior to the issuance of a Certificate of Occupancy for any building or structure, all screening and landscaping shall be in place in accordance with the approved landscape plan.
D.
Maintenance. The owner, tenant and/or their agent, if any, shall be jointly and severally responsible for the maintenance of all landscaping. All required landscaping shall be maintained in a neat and orderly manner at all times. This shall include, but not to be limited to, mowing (of grass of six inches (6") or higher), edging, pruning, fertilizing, watering, weeding, and other such activities common to the maintenance of landscaping. Landscaped areas shall be kept free of trash, litter, weeds, and other such material or plants not a part of the landscaping. All plant material shall be maintained in a healthy and growing condition as is appropriate for the season of the year. Plant materials which die shall be replaced with plant material of similar variety and size, within ninety (90) days. Trees with a trunk diameter in excess of six inches (6") measured twenty-four inches (24") above the ground may be replaced with ones of similar variety having a trunk diameter of no less than three inches (3") measured twenty-four inches (24") above the ground. A time extension may be granted by the Planning Manager if substantial evidence is presented to indicate abnormal circumstances beyond the control of the owner or his agent. Failure to maintain any landscape area in compliance with this section shall result in the disapproval and revocation of any issued certificate of occupancy associated with the occupancy of said area.
E.
General Standards.
1.
All required landscaped open areas shall be completely covered with living plant material. Artificial landscaping materials such as wood chips and gravel may be used under trees, shrubs and other plants.
2.
Plant materials shall conform to the standards of the recommended plant list for the City of Keller (see Article Nine - Recommended List for Required Landscape Areas). Grass seed, sod and other material shall be clean and reasonably free of weeds and noxious pests and insects.
3.
Grass areas shall be sodded, plugged, sprigged, hydro-mulched or seeded except that solid sod shall be used in swales, earthen berms or other areas subject to erosion.
4.
Ground covers used in lieu of grass in whole and in part shall be planted in such a manner as to present a finished appearance and reasonably completed coverage within one (1) year of planting.
5.
All required landscaped open areas shall be provided with adequate and inconspicuous irrigation systems.
6.
Earthen berms shall have side slopes not to exceed 33.3 percent (three feet (3') of horizontal distance for each one foot (1') of height). All berms shall contain necessary drainage provisions as may be required by the City Engineer.
7.
Small shrubs shall be trimmed to a height no greater than three feet (3'). Ornamental trees shall be trimmed from the base up to a minimum height of three feet (3').
F.
Minimum Landscaping Requirements for Non-Residential and Multi-Family.
1.
Buffers.
a.
Minimum thirty-foot (30') landscape buffer adjacent to all thoroughfares with four (4) or more lanes as classified on the current Comprehensive Thoroughfare Plan.
b.
Minimum fifteen-foot (15') landscape buffer adjacent to all other public streets.
c.
Minimum thirty-foot (30') landscape buffer adjacent to all properties with residential uses or zoning or when residential zoning or uses are across the street from the side or rear yard of a non-residential or multi-family development.
d.
Minimum ten-foot (10') landscape buffer adjacent to side and rear property lines when adjacent to non-residential uses or zoning. This provision does not apply in cases of shared driveways or parking between lots.
2.
Buffer Trees.
a.
Minimum four inch (4") caliper canopy trees in a straight spaced based on projected mature tree canopy widths near the center of the thirty-foot (30') landscape buffer adjacent to thoroughfares with four (4) or more lanes. To allow visibility of signage, trees may be planted in clusters to allow spacing between trees to be a maximum of sixty feet (60'). (Amended by Ord. No. 1799 on July 5, 2016)
b.
Minimum two (2) ornamental trees per fifty linear feet (50') of frontage planted in clusters or linear arrangement within the thirty-foot (30') landscape buffer adjacent to thoroughfares with four (4) lanes or more.
c.
Minimum three inch (3") caliper canopy trees spaced based on projected mature tree canopy widths in a straight line near the center of all other required buffers. To allow visibility of signage, trees may be planted in clusters to allow spacing between trees to be a maximum of sixty feet (60'). (Amended by Ord. No. 1799 on July 5, 2016)
d.
Existing trees of equal or greater size located within a required buffer may be counted toward the buffer tree requirement. New trees must be added to barren areas within buffer and trees may be arranged in formal masses instead of a straight line if existing trees are present anywhere inside the buffer.
3.
Landscaping Requirement for Parking Lots.
a.
Parking lots shall be 100% screened with shrubs or berms adjacent to all public streets. Berms shall be a minimum of three feet (3') in height and shrubs shall be a minimum of two feet (2') in height at time of planting. Shrubs shall be planted and maintained so as to form a continuous, unbroken, solid visual screen which will be three feet (3') high within one (1) year after time of planting.
b.
All parking lot islands must be a minimum of nine feet (9') in width and twenty feet (20') in length.
c.
No more than twelve (12) consecutive parking spaces shall be allowed without the interruption of a landscaped island.
d.
For large parking lots with several rows of parking spaces, a minimum ten-foot (10') wide continuous landscaped island shall be provided at various locations to break up the expanse of paving.
e.
The ends of all parking aisles must be terminated with a landscaped island.
f.
An island the size of one (1) parking space shall contain one (1) large three-inch (3") caliper canopy tree and an island the size of two parking spaces shall contain two (2) large three-inch (3") caliper trees.
g.
Continuous islands perpendicular to parking spaces must contain large three-inch (3") caliper canopy trees spaced at one (1) tree per forty feet (40').
h.
A minimum of 15% of all parking lots shall be landscaped.
i.
If the number of parking spaces exceed the Code requirements by more than ten percent (10%), a fifty (50) square foot of additional landscaping shall be provided for each additional parking space.
j.
Foundation planting a minimum of five feet (5') in width shall be provided at the fronts and sides of buildings and shall consist of a combination of groundcovers, shrubs, and ornamental trees.
G.
Minimum Landscaping Requirements for Residential.
1.
A minimum of two (2) large canopy trees with a minimum three-inch (3") caliper shall be planted in the required front yard of all new single-family uses. Existing trees of equal or greater size within the required front yard may be counted toward this requirement.
2.
A minimum of two (2) large canopy trees with a minimum three inch (3") caliper shall be planted in the required side yard adjacent to a street of all new single-family uses on corner lots. Existing trees of equal or greater size within the required side yard adjacent to a street may be counted toward this requirement.
H.
Tree Preservation. All new developments must fully comply with the requirements of Section 10.01 - Tree and Natural Feature Preservation.
I.
Sight Distance and Visibility.
1.
Rigid compliance with these landscaping requirements shall not be such as to cause visibility obstructions and/or blind corners at intersections. Whenever an accessway intersects a public street or when two (2) public streets intersect, a triangular visibility area, as described below, shall be created. Landscaping within the triangular visibility area shall be designed to provide unobstructed cross-visibility at a level between three (3) and six (6) feet. Trees may be permitted in this area provided that they are trimmed in such a manner that no limbs or foliage extend into the cross-visibility area. The triangular areas are:
a.
The areas of property on both sides of the intersection of an accessway and public right-of-way shall have a triangular visibility area with two (2) sides of each triangle being a minimum of ten feet (10') in length from the point of intersection and the third side being a line connecting the ends of the other two (2) sides.
b.
The areas of property located at a corner formed by the intersection of two (2) or more public rights-of-way shall have a triangular visibility area with two (2) sides of each triangle being a minimum of twenty-five feet (25') in length from the point of intersection and the third side being a line connecting the ends of the other two (2) sides.
2.
Landscaping, except required grass and low ground cover, shall not be located closer than three feet (3') from the edge of any accessway pavement.
3.
In the event other visibility obstructions are apparent in the proposed landscape plan, as determined by the City Engineer, the requirements set forth may be reduced to the extent to remove the conflict.
(Ord. No. 2104, § 2, 12-6-22)
The following is a list of plants and trees recommended for required landscape areas, including but not limited to, the City's public rights-of-way, commercial developments, residential screening walls, parking lot islands, and landscaped buffers. It includes lower water use plants when grouped according to water needs. This will reduce the amount of water utilized by the development. The plants and trees with the asterisks will require the least amount of water to maximize water reduction.
* Low water use
* Low water use
(Ord. No. 2104, § 2, 12-6-22)
Editor's note— Former § 9.04.
A.
Purpose. This section provides standards for the erection and maintenance of signs within the City of Keller. All signs erected, altered, changed, constructed, relocated, or replaced after the effective date of this Code shall comply with the requirements of this Code at the time of sign permit. The general objectives of these standards are to promote health, safety, morals, general welfare, convenience, and enjoyment of the public.
1.
To promote the safety of persons and property.
2.
To allow orderly sharing of commercial and non-commercial messages.
3.
To enhance the appearance and economic value of the streetscape.
4.
To protect the public welfare.
B.
Administration. The provisions of this Code shall be administered by the Planning Manager or designated representative and enforced by City Staff.
1.
Permit Required. No sign shall be erected, altered, changed refaced, constructed, relocated, replaced or repaired until a permit has been issued. It shall be an affirmative defense to this requirement that the sign type is listed as not requiring a permit elsewhere in this chapter.
a.
Permit Fee. A permit shall not be issued until the permit fee has been paid. The permit fee for a sign permit shall be the fee set out in the current fee schedule adopted by the City. A fee shall be charged for temporary signs for non-profits and religious institutions.
b.
Permit Application. A permit application must be made to the Community Development Department in order to obtain a permit. All applications for permits shall include;
1)
A drawing to scale of the proposed sign, that labels the type of material, height and width dimensions, and lighting specifications.
2)
All existing signs maintained on the premise.
3)
A drawing of the lot plan and building façade and dimensions indicating the proposed location of the sign, and sign specifications.
c.
All new permanent signs require an inspection. Inspections may be completed with the Site Final, Certificate of Occupancy Inspection, or separately, as appropriate.
2.
Sign Exemptions. The provisions of this section do not apply to the following and no permit shall be required:
a.
A sign or marker giving information about the location of underground electric transmission lines, telegraph or telephone properties and facilities, pipelines, public sewers, or water lines or other public utilities.
b.
Signs as governed by State law. When a City Ordinance is pre-empted by state law, state law will govern.
c.
Memorial signs or tablets, names of buildings and date of erection, when cut into any masonry surface or when constructed of bronze or other similar materials.
d.
Flags, emblems, and insignia of any governmental body.
e.
Decorative displays for holidays or public demonstrations which do not contain advertising.
f.
Indoor signs that are at least three feet (3') from window.
g.
Signs approved with a Special Event Permit, Seasonal Sales or Temporary Vendor Permit. Special Event signs may be located in the Median of Bear Creek Parkway between Rufe Snow Drive and Keller Smithfield Road.
h.
Street number signs not exceeding one (1) square foot in area.
i.
Government signs including national flag or state flag, or to limit flags, insignia, legal notices, or informational, directional, or traffic signs which are legally required or necessary to the essential functions of government agencies (State, Federal, Keller Independent School District, and the City of Keller).
j.
Signs on temporary construction trailers.
3.
Nonconforming Signs.
a.
Nonconforming signs shall not be enlarged, extended, structurally reconstructed, or altered in any manner, except that the sign face may be replaced or altered to reflect a change in ownership, business name or logo, or other message.
b.
Nonconforming signs may remain, provided that they are maintained in good repair, except as follows:
1.
A nonconforming sign or the structure supporting the sign which is damaged or destroyed to the extent of fifty percent (50%) or more of the current replacement value shall be removed or brought into compliance with this Code.
2.
A nonconforming sign or the structure supporting the sign shall be removed if the sign is damaged or destroyed to the extent of fifty percent (50%) or more.
3.
If the damage or destruction is less than fifty percent (50%), the sign must be under repair within thirty (30) days and all repairs must be completed within three (3) months. The sign shall not be enlarged in any manner.
4.
When a nonconforming sign, or a substantial part of the sign is damaged, destroyed, taken down, or removed, it may not be re-erected, reconstructed, or rebuilt except in full compliance and conformance with this Code. For purposes of this section, substantial shall mean if the cost of repair exceeds fifty percent (50%) of the cost of a new sign of the same construction and size. A nonconforming, on-premise, detached sign which is required to be relocated due to expansion of public right-of- way may be relocated on the same lot or tract, provided there is no more than one (1) detached sign per lot or tract. The relocation shall occur within six (6) months following completion of the road.
c.
Nonconforming signs, including Billboards, that are proposed to be modified to an electric message board shall require a special exception to the sign code.
4.
Special Exception.
a.
Any exception to this Code shall be presented in writing to the Planning Manager and shall be not be allowed unless approved by City Council after receiving a recommendation from the Planning and Zoning Commission. In reviewing a requested special exception to the sign code the Planning and Zoning Commission and City Council may consider:
1.
Whether the requested exception will not adversely affect public safety,
2.
Whether the requested exception will not adversely affect surrounding properties,
3.
Whether the requested exception will be in harmony with the spirit and purpose of this sign code,
4.
Whether special conditions exist which are unique to the applicant or property,
5.
Whether the requested exception demonstrates increased quality and standards, and
6.
Whether the requested exception will be aesthetically appropriate in the area.
5.
Special Sign Districts.
a.
A Special Sign District may be established for the purposes of promoting the character a unique area with separate and specific sign regulations.
b.
A Special Sign District may be established as part of a Planned Development Zoning District or separately. If established separately from a Planned Development Zoning District, a Special Sign District shall be approved by City Council after receiving a recommendation from the Planning and Zoning Commission.
C.
Sign Measurements.
1.
Sign Area. For the purposes of this section, sign area shall be measured as follows:
a.
Square or rectangular signs shall be measure as the length times the height of the sign (Figure 26, Section 9.14).
b.
Irregular shaped signs shall be measured as the sum of the areas of rectangles, triangles, circles, or combination thereof necessary to enclose the sign face (Figure 27, Section 9.14).
c.
Signs composed of individual cutout letters or figures shall be measured as the sum of areas of rectangles, triangles, circles, or combination thereof necessary to enclose the letters or figures (Figure 28, Section 9.14).
d.
For double-faced signs with less than thirty inches (30") between faces, and less than a thirty-degree interior angle between faces, only one side shall be counted as the total area. Where the faces are not equal in size, the larger sign face shall be used as the basis for calculating sign area (Figure 29, Section 9.14).
e.
Total sign area shall include all masonry supports and frames.
2.
Sign Height. Sign height shall be measured as follows:
a.
When measuring sign height, the height of the entire structure, including decorative and structural elements must be included. Monument and freestanding signs shall be measured from the base of the sign. Wall and attached signs will be measured from the lowest point of the sign or its supporting structures to the highest point of the sign or its supporting structures.
b.
Berming or increasing the ground height to increase sign height is not permitted. Height measurement shall be from average grade if berms are used.
c.
Clearance for a projecting sign is measured from the base of the building, or sidewalk passing under the sign to the lowest point of the sign or its supporting structure.
3.
Distance.
a.
Whenever a minimum distance between signs is indicated, it means the horizontal distance measured from the closest points of each sign as if each sign's closest point touched the ground.
b.
Whenever a minimum setback distance is indicated, it means the horizontal distance measured from the closest two points as if the sign's closest point touched the ground.
D.
General Standards.
1.
Prohibited Signs.
a.
Moving, flashing, intermittently-lighted, changing colors, beacons, revolving or similarly constructed signs are not allowed in any zoning district. It shall be an affirmative defense if such signs are otherwise allowed in this Code.
b.
No person shall attach any sign, paper, or material, or paint, stencil, or write any name, number (except house or street address numbers) or otherwise mark on any sidewalk, curb, gutter, or street.
c.
No person shall attach or maintain any sign upon any tree, utility pole, light pole or similar structure.
d.
Signs shall not display gestures or words that are obscene, profane, or pornographic in nature or any other manner that is illegal under State or Federal law.
e.
Signs over or in public rights-of-way are prohibited, except movement control, traffic control devices, street signs, way-finding, entry-way or portal signs, or directional signs placed by the City or State. Projected banner signs over the U.S. Highway 377/Main Street right of way are allowed in Old Town Keller district if part of a special event and in compliance with Texas Department of Transportation guidelines.
f.
All off-site (off-premise) signage is prohibited unless specifically allowed by this Code.
g.
Pole signs are prohibited. Monument sign bases must be at least the width of the sign.
h.
Signs attached to or upon any a trailer, skid, or similar mobile structure or vehicle shall be prohibited where any such vehicle is allowed to remain parked in the same location, or in the same vicinity, at frequent or extended periods of time, where the intent is apparent to be one of using the vehicle and signs for purposes of advertising an establishment, service, or product.
i.
Internally illuminated boxed cabinet wall signs are prohibited.
j.
Exposed neon tubing is prohibited unless used in reverse can letters.
k.
Abandoned signs' sign copy should be removed when the tenant leaves the space. The supporting structure may remain for future tenants.
l.
Off-premise signs are prohibited unless specifically allowed elsewhere in this code.
2.
Hazards & Nuisances.
a.
Signs shall not create a hazard due to collapse, fire, collision, decay, disrepair, location, or abandonment.
b.
Signs shall not obstruct firefighting or police surveillance.
c.
Signs shall not create traffic hazards by confusing or distracting motorists, or by impairing the driver's ability to see pedestrians, obstacles, or other vehicles, or to read traffic signs.
d.
Signs shall not obstruct or create a nuisance to persons using the public rights-of-way.
e.
Sign shall not be located in a manner that could constitute a hazard or nuisance.
f.
No sign shall be illuminated to an intensity or brightness to a degree that could constitute a hazard or nuisance.
3.
Maintenance.
a.
Signs shall be kept in well-maintained condition at all times to prevent deterioration, oxidation, rust, discoloration, or other unsightly conditions and in a safe condition free from all hazards including but not limited to faulty wiring and loose fastenings so as not to be detrimental to public health and safety. Signs that are not well-maintained, including but not limited to signs that are weathered, shall be removed.
b.
Signs shall not create urban blight due to lack of maintenance.
4.
Design Standards.
a.
Signs may be internally or externally illuminated unless stated otherwise in this code.
b.
No internally illuminated sign shall be erected within one hundred and fifty feet (150') of a single family or two-family residential development, unless the lighting is shielded from view of the residential development by the building, walls, or other permanent features. The distance shall be measured in a straight line.
c.
All permanent signs shall be constructed of quality materials including aluminum, masonry stone, brick, stucco, molded plastics and acrylic.
d.
All temporary signs shall be made of professional materials including plastic, wood, metal, corrugated plastics. Temporary banner signs shall be made of cloth, plastic or other fabric-like flexible material.
e.
All supporting hardware shall be concealed from view or integrated into the sign design.
f.
All signs, including temporary signs, must be printed and professional in appearance. No handwritten or spray painted signs are allowed, except window signs may be hand painted or applied directly to the window using paints or similar media.
g.
Signs shall be located a minimum of five feet (5') from the public right-of-way and shall comply with require visibility triangles.
h.
Signs for buildings in a multi-use development approved as part of one preliminary site evaluation or zoning application shall be compatible in design, size, material and lighting.
i.
The Old Town Keller (OTK) and Town Center (TC) zoning districts have additional design standards and sign allowances. Please see Section 8.03 (Q) for Old Town Keller Standards and Section 8.03 (P) for Town Center Standards.
5.
Temporary Sign Regulations.
a.
Signs at Polling Places. This subchapter is specific to Town Hall as a polling location. Signs are allowed at Town Hall only during the time it is used as a polling location during voting periods and only insofar as required by state law and the following time, place and manner requirements are met:
1)
Time. In accordance with Texas Election Code §61.003, signs shall be allowed at polling sites during early voting periods or on Election Day. Signs so posted must be removed within forty-eight (48) hours after the close of the early voting period or the close of the polls on Election Day, whichever is applicable.
2)
Place.
a)
No signs or campaign literature are permitted on City property, except as required by Texas Election Code section 61.003 or 85.036. This prohibition includes all locations, so long as there is no polling site at that location, including city hall, city service center, library, Keller Pointe, public parks, fire stations, police departments and water pumping stations.
b)
For so long as required by Texas Election Code section 61.003 and 85.036, all public property upon which there is located a polling place, outside the area described in §61.003, and within the area which is allowed to have signs posted shall meet the following requirements:
i.
The sign shall only be allowed to be located in the granite bed around the fountain on the North side of Keller Town Hall.
ii.
The sign cannot be a traffic or safety hazard.
iii.
The sign should be attached to a stake not to exceed a 9 gauge diameter (American Wire Gauge standard (AXG) driven into the ground well clear of tree roots, irrigation lines and any other underground vegetation or structures.
3)
Manner.
a)
Only three (3) signs per candidate or ballot measure proposition.
b)
Signs must be self-supporting.
c)
Signs cannot be illuminated.
d)
Signs shall not have any moving elements.
e)
Signs shall not exceed four feet (4') in height.
f)
The sign shall not exceed three (3) square feet in area.
6.
Attached Signs General Standards.
7.
Detached Signs General Standards.
a.
Unified-lot signs may be used in lieu of detached monument signs and shall comply with the area, height, setback, spacing, and design standards for detached monument signs.
1)
One unified-lot sign per street front may be placed on a premise consisting of two or more contiguous lots and/or tracts of land where each property owner has entered into a binding agreement to treat their separate properties as one lot for the limited purpose of signage. The agreement shall contain a legal description of the properties subject to the agreement; state that the parties, their heirs and assigns forego any rights to additional freestanding signs on the premises covered by the agreement; state that the agreement is a covenant running with the land to be filed and made a part of the Deed Records of Tarrant County, Texas; and that the agreement cannot be amended or terminated without the consent of the Planning Manager or designee.
2)
A unified-lot sign agreement shall not be effective until a true and correct copy of the agreement is filed in the Deed Records of Tarrant County, Texas, and a file- marked copy is filed with the Planning Manager or designee.
3)
Individual lots or tracts of land that are a part of a unified-lot agreement shall not be entitled to any other free-standing street front signage.
8.
Murals.
a.
Private murals are permitted in the Katy Road, Retail, OTK and Town Center Zoning Districts with approval from City Council following a recommendation by the Planning and Zoning Commission. Where permitted, the following applies:
1)
Shall not include any owner identification or commercial text message; however, it may contain graphics or images that relates to the products or services offered on the premises where the mural is located.
2)
Murals or art representation displaying any owner identification or commercial text message will be considered as a "flat/wall sign".
3)
Shall not depict nudity or obscene images and be generally acceptable for viewing by all audiences.
4)
Materials utilized in painting a mural shall have proven durability and shall be maintained or removed if not maintained.
9.
Billboards.
a.
Any Billboard in existence prior to the effective date of this code is considered a nonconforming sign.
b.
Existing Billboards that are proposed to be modified to an electronic message board shall require a special exception to the sign code and shall not be allowed unless approved by City Council.
(Ord. No. 1972, § 2(Exh. A), 6-16-20; Ord. No. 2104, § 2, 12-6-22; Ord. No. 2138, 9-5-23; Ord. No. 2166, § 2(Exh. A), 5-7-24)
A.
General Provisions.
1.
In a single-family or multi-family district, an accessory building or use is a subordinate or incidental building or use detached from the main building, not used for commercial purposes. A home occupation may be allowed in an accessory building as a subordinate use. The combined area of all accessory buildings on a lot shall be less than fifty percent (50%) of the main structure, unless approved by a SUP.
2.
In non-residential districts, an accessory building or use is a subordinate building or a subordinate use in the primary building, the use of which is secondary to and supportive of the main building. Accessory buildings shall not be permitted without a main building or primary use being in existence. Living quarters may be utilized in non-residential districts if occupied by the owner or manager of the non-residential use and shall not exceed two thousand (2,000) square feet.
3.
All accessory buildings shall be complimentary to the main structure, constructed of brick or stone or the same material as the main structure(s).
4.
Accessory buildings shall not contain full kitchen facilities unless approved as an accessory dwelling unit.
5.
Detached accessory buildings shall be prohibited in front of the main building.
6.
All side and rear setback requirements of the zoning district shall be met.
7.
Accessory buildings are not allowed in easement areas or alleys. Accessory buildings one hundred twenty (120) square feet or less are allowed to be a minimum of five feet (5') from the side and rear property lines. Accessory buildings one hundred twenty (120) square feet or less on residential properties zoned for patio homes shall meet the minimum side setback requirements of its respective zoning district.
8.
Accessory buildings are not permitted without a main structure unless on tracts of two (2) acres or more and used solely for agricultural purposes. Workshops, garages, or similar uses shall not be considered as agricultural purposes. In such case, a minimum of one hundred foot (100') front building setback is required.
9.
The maximum height of an accessory building shall not exceed fifteen feet (15') unless approved by a Specific Use Permit (SUP) for additional height (see below or Section 3.01 for definition of Building Height and Section 9.14 - Figure 9 for Illustration of Building Height). Accessory buildings of less than one hundred twenty (120) square feet shall not exceed ten feet (10') in height.
Building Height The vertical distance from the average line of the highest and lowest points of that portion of the lot covered by the building to the highest point of coping of a flat roof, or a deck line of a mansard roof or to the average height of the highest gable of a pitch or hip roof (Section 3.01).
10.
There shall be no more than two (2) detached accessory buildings per single-family lot and they must be separated by a distance of not less than ten feet (10').
11.
Wood shingles are not permitted for accessory buildings.
12.
Detached carports are considered as accessory buildings and shall meet the requirements of this section.
13.
The use of storage containers may be allowed for a limited time such as moving or construction with a permit. Extended use of storage containers may be considered with an SUP.
14.
All accessory buildings that are attached to the main structure (i.e. breezeways, trellised walkways, etc.) shall not be considered an expansion of the main structure unless the expansion shares a wall with the main structure or incorporates a porte-cochere, with a minimum width of ten-foot perpendicular to the primary building. Otherwise, the structure shall be defined as a detached accessory structure and will be subjected to all accessory building standards. This applies to accessory dwelling units also.
B.
Accessory Dwelling Units. Detached accessory dwelling units in the residential districts shall be allowed as an incidental residential use of a building on the same lot as the main dwelling unit and used by the same person or persons of the immediate family, and meet the following standards:
1.
The accessory dwelling unit shall be constructed behind the main dwelling on a lot with a minimum area of one-and-a-half (1.5) acres.
2.
All accessory dwelling units require approval of a Specific Use Permit by the City Council.
3.
Setback requirements shall be the same as for the main structure.
4.
Accessory dwelling units shall be constructed from the same materials as the main building.
5.
Accessory dwellings units are not permitted without the main or primary structure.
(Ord. No. 1991, § 2(Exh. A), 11-17-20; Ord. No. 2020, § 2, 6-1-21; Ord. No. 2040, § 2, 10-19-21; Ord. No. 2104, § 2, 12-6-22)
A.
General Requirements for all Properties.
1.
A fence permit shall be required for the following:
a)
All new fence construction.
b)
The replacement of an existing fence of more than eight (8) linear feet being replaced in the same location other than Agricultural Fencing.
c)
The relocation of any portion of fencing regardless whether the same panels are being used.
A permit is not required for replacement of posts or hardware if there is no replacement of panels.
2.
When sixty percent (60%) or greater of the total linear feet of a Legal Non-Conforming fence is replaced, the fence shall adhere to the standards of the current applicable Code. The percentage of linear feet being replaced cannot exceed more than fifty-nine percent (59%) in a twelve (12) month period from the date of the previous approved fence permit to retain the legal non-conforming status.
3.
All fences shall be kept in good repair and shall not create urban blight. Dilapidated fences shall be repaired or replaced in accordance with provisions of this Code. Wood fences may be painted or stained with natural wood colors. Iron fences may be painted. No bright unnatural colors are allowed on any fencing. Fencing of the same material(s) must be a consistent color.
4.
Dependent on the requirements below, fences may be constructed of wood, ornamental metal, tubular steel, or similar material. Fences may also be constructed of an open-style wood fencing with a thin-gauge wire screen attached directly behind the wood. White vinyl fencing is only permitted in the SF-36 zoning district if all of the following requirements are met:
a)
Designed as post and 2-, 3-, or 4-rail ranch fencing (see Diagram XX), and
b)
Applicant's property is used for agricultural purposes or is immediately adjacent to agricultural uses, and
c)
The fencing material is professional grade (e.g. made from virgin vinyl, contains UV inhibitors (such as titanium dioxide) and impact modifiers), and
d)
The fence is warrantied for a minimum of 20 years (versus "lifetime" warranty).
5.
Variances to this ordinance may be considered by the Zoning Board of Adjustment.
6.
"Open style" fencing requires that 50% of each panel be open. Examples of open fence styles include pipe, pipe and cable, wrought iron, picket, and rail fencing.
B.
Height Requirements.
1.
Height requirements are as follows:
a)
Eight feet (8') maximum for all interior rear and side yards. (Any area in front of the main structure is considered "Front Yard" per the UDC.)
b)
Open-style fence height requirements for front yards and side yards in front of the main structure are as follows:
1)
For properties which are located in SF-8.4, SF-10, SF-12, and SF-15 zoning districts, fence shall not exceed a height of thirty-six inches (36") when located in front of the main structure.
2)
For properties which are located in SF-20, SF-25, SF-30, and SF-36 zoning districts, fence shall not exceed a height of six feet (6') when located in front of the main structure and the property is a half-acre or greater. If the property is less than a half-acre, refer to B(1)(b)(1) of this code.
c)
Corner lots shall comply with the following requirements:
1)
The maximum height of fences for corner lots are as follows:
a)
Eight (8) feet for side fences and rear fences adjacent to a street.
b)
Eight (8) feet for connecting interior fences that are not adjacent to the street.
c)
When a fence is adjacent to a park or trail (regardless whether it is developed or passive) the maximum height allowed is eight feet (8').
d)
Ten feet (10') in height for athletic enclosures on residential properties which cannot be seen from the street or adjacent properties.
e)
When a fence abuts a subdivision Landscaping/Screening Wall, the height of a fence adjacent or perpendicular to a screening wall shall not exceed the height of the subdivision's screening wall or any other fence constructed by the developer at the time of initial development.
f)
Special exceptions for fence heights over these maximums may be made for properties of exceptional topography or necessary finished floor elevations to aid in screening when standard fence heights are inadequate. The determination will be made by the Director of Community Development or his/her designee.
C.
Locations for Fences In All Zoning Districts.
1.
In all zoning districts, fences adjacent to a street must be inset a minimum of four feet (4') from the property line except when front property line is adjacent to a bar ditch.
2.
In all zoning districts, solid fences for side and rear yards may be allowed on the property line when such fence is not adjacent to a street.
3.
The location of fences adjacent to a street on corner lots shall be as follows:
a)
Open-style fences (including front and side yards when adjacent to a street) shall be located a minimum of four feet (4') inside of the property line except when front property line is adjacent to a bar ditch.
b)
If a side or rear fence for a property is located in front of the main structure of an adjacent property:
1)
A solid fence may be located no closer than twenty-five (25) feet from the side property line facing the street.
2)
An open-style fence may be located no closer than four (4) feet from the side property line facing the street.
3)
Landscaping may not be added that inhibits traffic visibility of the corner.
4)
If the corner lot is on an entry to a cul-de-sac, the fence may extend to the build line on both street-facing sides even if closer than 25' and extends in front of the adjacent home. This latter scenario assumes the corner home was built behind the build line.
5)
Fences and landscaping are required to have a vision clip in accordance with this Code (see Art. 9 Section 9.03.I.b) so as not to impede the vision of traffic. Live screening is allowed inside of the fence.
d)
When a fence abuts a subdivision Landscaping/Screening Wall, a private fence may be constructed beyond the required setback line in order to adjoin the subdivision screening wall.
D.
Requirements for Lots Adjacent to Streets, Schools, Alleyways, and other Public Spaces. Allowable wood privacy fences adjacent to streets, schools, passive parks, alleyways, or visible from public spaces shall have the finished side facing the public space. All fence posts and structural components shall be placed on the interior of the lot.
E.
Requirements for Lots Adjacent to Thoroughfares. All new or replacement privacy wooden fences adjacent to a thoroughfare, as shown on the Thoroughfare Plan, shall be constructed of Cedar material with posts set in concrete and Cedar top caps, and bottom caps (also as known as "rot boards" or "kickboards") constructed of treated wood. The entire fence shall be stained with Ready Seal or equivalent wood sealant material. All replacement of Legal Non-Conforming fences more than sixty percent (60%) of total linear feet shall comply with this provision (see Art. 9 Sec. 9.13 Figure 19).
F.
Requirements for Lots in or Adjacent to a Drainage Way or Drainage Easement. Fences adjacent to a drainage way or drainage easement shall be as follows:
1.
All fences adjacent to drainage ways or drainage easements (including floodplains and floodways) shall be constructed of an open-style fence and may be constructed of ornamental metal, tubular steel, or similar material. Masonry columns may be considered in conjunction with one of the aforementioned materials and require approval of the Public Works Director or his/her designee when requested in or adjacent to a drainage way or drainage easement. Vinyl fencing is strictly prohibited. Wood fencing shall not be allowed within or immediately behind the required open fencing.
2.
All fences that are adjacent to drainage ways and drainage easements and have been historically constructed of wood and do not inhibit the Drainage Easement may be approved by the Public Works Director or his/her designee on a case-by-case basis. If approved, the fence shall meet all other applicable criteria as set forth in this Code.
3.
Swing gates may be required by the Public Works Director or his/her designee. In such cases, the fence must comply with all other applicable Codes in this ordinance.
G.
Requirements for Lots in or Adjacent to a Open Space or a Common Space. All fences adjacent to an open space and/or a common space area shall be constructed of ornamental metal, tubular steel, or similar material.
H.
Requirements for Lots Adjacent to a Park or Trail. All fences in or adjacent to a park or trail shall be as follows:
1.
Fences in or adjacent to a developed park or trail shall be constructed of ornamental iron, tubular steel, or similar material. Vinyl fencing is strictly prohibited.
2.
Fences in or adjacent to a passive park may be constructed of (privacy) wood with smooth side facing out, ornamental metal, or tubular steel. Fences may also be constructed of an open-style wood fencing with a thin-gauge wire screen attached directly behind the wood. Vinyl fencing is strictly prohibited.
I.
Requirements for Lots with a Swimming Pool. Swimming pool fences shall comply with the following requirements:
1.
Swimming pools barriers (fences) shall be no less than 48 inches (1219 mm) above grade where measured on the side of the barrier that faces away from the pool or spa. Such height shall exist around the entire perimeter of the barrier and for a distance of 3 feet (914 mm) measured horizontally from the outside of the required barrier.
2.
Openings in the fence shall not allow passage of a 4-inch-diameter sphere. All gates shall have self-closing, self-latching mechanisms installed.
3.
A main structure or accessory building may be used as part of a fence enclosure, provided that all entrances into the swimming pool area or court are equipped with gates as described herein, or doors with latches or locks.
J.
Requirements for Non-Residential Uses in Residential Districts. Fences for non-residential uses allowed in residential districts such as schools and churches shall be constructed of ornamental metal, tubular steel, masonry, or a combination thereof. Fences may also be constructed of an open-style wood fencing with a thin-gauge wire screen attached directly behind the wood. Vinyl fencing is strictly prohibited.
K.
Requirements for Drive Gates. Drive gates are permitted as follows:
1.
Properties in SF-8.4, SF-10, SF-12, SF-15 zoning districts in side or back yard.
2.
Properties in SF-20, SF-25, SF-30, and SF-36 zoning districts fencing is installed in the front yard, side yard, or back yard.
3.
All drive gates must adhere to the following criteria:
a)
Swinging drive gates must swing in towards the property and not out towards the street. Sliding gates may also be considered for a drive gate.
b)
All drive gates directly adjacent to a public street must be inset a minimum distance of twenty-five (25') from the edge of the curb or pavement, and
c)
All drive gates directly adjacent to a thoroughfare as shown on the Thoroughfare Plan must be inset for a minimum of fifty feet (50') from the edge of the curb or edge of pavement.
L.
Requirements for Chain Link Fencing. Chain link perimeter fencing is generally prohibited in all zoning districts with the following exceptions:
1.
Fencing of dog runs and athletic enclosures on residential properties are allowed as follows:
a)
Galvanized chain link is allowed when the fence cannot be seen from the street or adjacent properties.
b)
If the chain link fence can be seen from adjacent properties at grade level, the fence shall be vinyl clad in black, green or tan.
c)
Refer to "B(1)(c)(1)(d)" of this Code for height requirements of athletic enclosures.
2.
Existing chain link perimeter fencing on residential properties if no more than sixty percent (60%) of the fence is being replaced and no other replacement of fencing has been done in the previous twenty-four (24) months.
3.
Galvanized chain link fencing may be allowed with a permit on a temporary basis for construction purposes or special events and must be removed before the request of the final inspection of the building and/or site at the end of the special event, respectively.
4.
Temporary Construction fences shall comply with the following requirements:
a)
Galvanized chain link fencing is allowed on a temporary basis for non-residential projects and residential projects of five or more lots while under construction, with a permit. The fence adjacent to a street shall be four feet (4') inside of the property line and shall not encroach the Right-of-Way nor impede the vision of traffic.
b)
Fence wrap (mesh screening) eighty percent (80%) or greater opacity is required in conjunction with chain link fencing on the following types of projects:
1)
Non-residential projects;
2)
Residential subdivision projects of five (5) or more lots;
3)
All projects which are adjacent to or visible from a thoroughfare.
5.
Advertisement may be allowed to be printed on fence wrap in lieu of a Development Sign and must be listed on the fence permit application. Proposed advertising graphics shall be included as part of the permitting process for the fence wrap and chain link fence. If mesh screening is utilized for advertisement, a development sign is not required. Advertisement of project name, project elevation, construction company, lending agency, and all other companies related to the project may be allowed on every other panel, but no more than fifty percent (50%) of the fence wrap may be utilized for this purpose. The background of the fence wrap shall be white.
M.
Exceptions and Requirements for Agricultural Use Fences. Fences for Agricultural Use, as defined in Art. 3, Sec. 3.01, located in SF-36 Zoning District and having two (2) acres or greater are as follows:
1.
Fences may be constructed of barbed wire, electrical fencing, slick wire, pipe fencing, pipe and cable fencing, composite decking, and utility fencing panels or any combination thereof. White vinyl fencing is only allowed in the SF-36 zoning district in accordance with the requirements of Section 9.07(A)(4).
2.
Fence height requirements are as specified in "B" of this Code.
3.
Temporary enclosures such as "round pens" and "bullpens" that are used for the purpose of temporary confinement of farm animals or training of farm animals and are easily relocated within the property are not required to obtain a permit
4.
A permit is required when installing a new agricultural fence on the perimeter of the property, or replacing more than fifty percent (50%) of the total linear feet of an existing perimeter fence. Interior agricultural fences that separate pastures and paddocks do not require a permit.
(Ord. No. 1960, § 2(Exh. A), 12-17-2019; Ord. No. 1999, § 2(Exh. A), 1-5-21; Ord. No. 2044, § 2, 11-2-21; Ord. No. 2104, § 2, 12-6-22)
A.
All multi-family properties that have four or less units in each building shall refer to Section 9.07 - Fencing Requirements in Single-Family (S) and Two-Family (2F) Residential Zoning Districts for fencing requirements.
B.
A fence permit shall be required for any new fence construction or replacement of an existing fence.
C.
All fences shall be kept in good repair and shall not create urban blight. Dilapidated fences shall be repaired or replaced in accordance with provisions of this Code.
D.
All fencing for multi-family and non-residential districts shall be shown on the site plan for the development and be approved as part of the site plan approval.
E.
Fencing shall be constructed of wrought iron, tubular steel, masonry, live screening, or a combination thereof. Vinyl fencing is strictly prohibited.
F.
Wood, barbed wire, or chain link fencing is prohibited unless specifically requested on a site plan and approved by the City Council. When a site plan is not applicable, the Zoning Board of Adjustment may consider variances to this requirement.
G.
Fencing shall not exceed eight feet (8') in height unless specifically approved on a site plan by the City Council.
H.
Galvanized chain link fencing may be allowed with a permit on a temporary basis for construction purposes or special events and must be removed before the request of the final inspection of the building and/or site at the end of the special event, respectively.
1.
Temporary Construction fences shall comply with the following requirements:
a)
Galvanized chain link fencing is allowed on a temporary basis for non-residential projects and residential projects of five or more lots while under construction, with a permit. The fence adjacent to a street shall be four feet (4') inside of the property line and shall not encroach the Right-of-Way nor impede the vision of traffic.
b)
Fence wrap (mesh screening) eighty percent (80%) or greater opacity is required in conjunction with chain link fencing on the following types of projects:
1)
Non-residential projects;
2)
Residential subdivision projects of five (5) or more lots;
3)
All projects which are adjacent to or visible from a thoroughfare.
2.
Advertisement may be allowed to be printed on fence wrap in lieu of a Development Sign and must be listed on the fence permit application. Proposed advertising graphics shall be included as part of the permitting process for the fence wrap and chain link fence. If mesh screening is utilized for advertisement, a development sign is not required. Advertisement of project name, project elevation, construction company, lending agency, and all other companies related to the project may be allowed on every other panel, but no more than fifty percent (50%) of the fence wrap may be utilized for this purpose. The background of the fence wrap shall be white.
Requirements for Lots with a Swimming Pool
I.
Swimming pool fences shall comply with the following requirements:
1.
Swimming pool fences may be constructed of ornamental metal, tubular steel, or similar material. Vinyl fencing is strictly prohibited.
2.
Swimming pools barriers (fences) shall be no less than 48 inches (1219 mm) above grade where measured on the side of the barrier that faces away from the pool or spa. Such height shall exist around the entire perimeter of the barrier and for a distance of 3 feet (914 mm) measured horizontally from the outside of the required barrier.
3.
Openings in the fence shall not allow passage of a 4-inch-diameter sphere. All gates shall have self-closing, self-latching mechanisms installed.
4.
An apartment building or accessory building may be used as part of a fence enclosure, provided that all entrances into the swimming pool area or court are equipped with gates as described herein, or doors with latches or locks.
(Ord. No. 1999, § 2(Exh. A), 1-5-21; Ord. No. 2104, § 2, 12-6-22)
A.
Screening walls shall be constructed of masonry material such as brick, stone, concrete panels, or similar materials consistent in material, finish, and color with the primary buildings within the development or adjacent buildings in the area. Screening walls shall be a minimum of six feet (6') in height. An eight feet (8') wall may be required on a case-by-case basis at the time of the site plan review. The wall finish shall be consistent on both sides.
B.
Screening walls are required when a non-residential or multi-family development is constructed adjacent to a single-family or two-family residential use or zoning district. The construction responsibility is with the multi-family or the non-residential development.
C.
Screening walls are required between multi-family and non-residential uses or zoning districts. The construction responsibility is with the non-residential use.
D.
Screening walls are required if a single-family development is being constructed adjacent to a developed multi-family or a developed non-residential use without a screening wall in place. The single-family residential development is required to construct a screening wall in accordance with this Code.
E.
Screening walls are required around waste container, trash compactor, and loading areas.
F.
Screening walls are required around outside storage areas. Storage of material shall not exceed the height of the screening wall.
G.
Screening walls are required for ground mounted utilities and heating/cooling units (see Section 9.01(D)(4)).
H.
Alternative screening methods may be requested as part of the site plan review process and may be approved by the City Council.
I.
Screening wall plans are required to be submitted to the City for review and permitting and shall be signed and sealed by a Structural or Civil Engineer licensed by the State of Texas. All screening wall plans shall be submitted at time of Building Permit application in accordance with the application requirements listed in Section 4.14 - Landscaping and Screening Wall Plans.
J.
All screening walls shall be kept in good repair and shall not create urban blight. Dilapidated screening walls shall be repaired or replaced in accordance with provisions of this Code. Repairs or replacements shall match the existing material (brick, panel, stone, etc.) colors.
*** Refer to Section 5.10 for Single Family Residential Thoroughfare Screening.***
(Ord. No. 1891, 6-5-18; Ord. No. 2104, § 2, 12-6-22)
A.
Purpose.
1.
The purpose of a public art fee requirement is to establish art for the enjoyment, happiness, welfare, and morals of the public, to provide a variety of cultural opportunities within convenient distances from a majority of the residential and non-residential areas, to heighten awareness and appreciation for the arts, to foster development projects respond to the distinctive characteristics of the community and their specific locals, to enhance economic development and cultural tourism, and to provide a method to implement the City of Keller Public Arts Master Plan.
2.
This section is adopted to provide public art and public art areas as a function of land development in the City of Keller. The City Council has determined public art areas are necessary for the public welfare. Furthermore, the only adequate procedure to provide for public art throughout the City is by integrating a requirement for art dedication into the procedures for planning and developing property in the City.
B.
General Requirements. These requirements shall apply to all single-family, two-family, multi- family residential, and non-residential developments in the City of Keller.
1.
A fee for public art is required for all residential developments of five (5) lots or more, for all new non-residential or mixed-use development projects, and for all redevelopments of non-residential or mixed use projects where the floor area is increased by twenty five percent (25%) or more.
2.
Public Arts Fees:
a.
All fees shall be sufficient to acquire public art, at a price set forth in the City of Keller Code of Ordinances Chapter 2, Administration, Article 1, In General, Section 2-270, Administrative Fees.
b.
Payments received may be used only for public art acquisition, installation, and/or administration.
c.
For residential developments, payments shall be received prior to the filing of the final plat for public improvements and prior to the final inspection for individual homes.
d.
For non-residential or mixed-use developments, payments shall be received prior to the final plat or site inspection, as applicable.
(Ord. No. 2104, § 2, 12-6-22)
A.
Front Yards.
1.
On all corner lots, the front yard setback shall be observed along the frontage of both intersecting streets, unless approved specifically otherwise on a final plat (see Section 9.14 - Figure 4). Where single-family, duplex and townhome lots have double frontage, extending from one street to another, or are on a corner, a required front yard shall be provided on both streets unless a side or rear yard building line has been established along one frontage on the plat, in which event only one required front yard need be observed (see Section 9.14 - Figure 6). The side and/or rear yards in the case of single-family, duplex and townhome uses shall be identified and the front of the structure shall not face the side or rear yard.
2.
Where the frontage on one side of a street between two intersecting streets is divided by two or more zoning districts, the front yard shall comply with the requirements of the most restrictive district for the entire frontage (see Section 9.14 - Figure 5).
3.
The front yard shall be measured from the property line to the front face of the building, covered porch, covered terrace or attached accessory building. Eaves and roof extensions or a porch without posts or columns may project into the required front yard for a distance not to exceed four feet (4'), and subsurface structures, platforms or slabs may not project into the front yard to a height greater than thirty inches (30") above the average grade of the yard (see Section 9.14 - Figure 8).
4.
Minimum front yard setbacks and lot widths for lots with predominate frontage on the curved radius of a dedicated cul-de-sac street shall be as follows:
5.
Visual clearance shall be provided in all zoning districts so that no fence, wall, architectural screen, earth mounding or landscaping three feet (3') or higher above the street center line obstructs the vision of a motor vehicle driver approaching any street, alley, or driveway intersection as follows:
a.
At a street intersection, clear vision must be maintained for a minimum of twenty-five feet (25') across any lot measured from the corner of the property line in both directions (see Section 9.14 - Figure 22).
b.
At an intersection with an alley, this clearance must be maintained for ten feet (10') (see Section 9.14 - Figure 22).
c.
Shrubs and hedges three feet (3') or less in height, as measured from the centerline of the street, may be located in the visual clearance areas of all districts.
6.
Gasoline service station pump islands may not be located nearer than eighteen feet (18') to the property line adjacent to a public street. Pump islands for a gasoline filling station may extend beyond the front building line but shall not be closer than fifteen feet (15') to any property line not adjacent to a public street provided that other requirements of this Code are met.
7.
Where a future right-of-way line has been established for future widening or opening of a street or thoroughfare, upon which a lot abuts, then the front, side, or rear yard shall be measured from the future right-of-way line.
8.
Satellite dishes are prohibited in the front yard area of any district. Only one satellite dish shall be permitted per residential lot or primary structure.
B.
Side Yards.
1.
On a corner lot used for one or two-family dwellings, both street exposures shall be treated as front yards on all lots platted after July 6, 1960 except that where one street exposure is designated as a side yard. In such case, a building line shall be designated on an approved plat with a minimum side yard of fifteen feet (15') or more. On lots which were official lots of record prior to the effective date of this Code, the minimum side yard adjacent to a side street shall comply with the minimum required side yard for the respective district.
2.
Every part of a required side yard shall be open and unobstructed except for accessory buildings as permitted herein (see Section 9.06 for exceptions) and the ordinary projections of window sills, belt courses, cornices, and other architectural features not to exceed twelve inches (12") into the required side yard, and roof eaves projecting not to exceed thirty-six inches (36") into the required side yard. Air conditioning compressors and similar equipment are permitted in the side yard.
C.
Special Height Regulations.
1.
In the districts where the height of buildings is restricted to two (2) or two and one-half (2½) stories towers, antennas, and architectural features may extend for an additional height not to exceed fifty feet (50') above the average grade line of the building.
2.
Amateur radio antennas and other transmitting and receiving devices of microwave or electromagnetic waves for broadcasting use, shall not interfere with radio or television reception of adjoining property owners, and shall comply with all regulations of the Federal Communications Commission (FCC). In no manner shall the use of such equipment infringe upon adjoining property owners. Satellite dishes and other similar antennas shall be permitted on the roof as long as satellite dishes do not exceed three feet (3') in diameter and antennas do not exceed fifty feet (50') in height as measured from the ground.
D.
Seasonal/Temporary Uses.
1.
Temporary locations for sale of merchandise are prohibited in the city limits of Keller unless approved by a Specific Use Permit (SUP).
2.
Temporary sale of merchandise may be allowed as part of a special event.
3.
Seasonal uses and sale shall be limited to may be allowed for 30 days, twice annually by permit in all zoning districts.
4.
The following information is required for submittal to the Community Development Department for review at the time of application:
a.
The full name of the person(s) applying for a permit, address and telephone number, if any, and, if the merchant is selling on behalf of an organization, the name and address of the parent organization.
b.
A letter from the property owner which authorizes the merchant to use the property for the purpose of temporary outdoor sales. Such letter shall bear the property owner's name, address, phone number and signature.
c.
A copy of a limited sales tax permit issued by the state or proof that the goods are not subject to such sales tax.
d.
A statement of the type of goods or wares to be sold.
e.
Provide a copy of a current health certificate of merchandise of edible quality is to be sold; however, this shall not apply to the sale of candy, nuts or other edibles prepared and packaged by a nationally recognized manufacturer or a Texas manufacturer meeting standards imposed by state and local health codes, if such packages are unbroken.
f.
Submittal of two (2) sets of a site plan, drawn to scale and legible, indicating the following:
1)
Stands, shelters, trailers, tents and buildings on the property.
2)
Lighting and electrical equipment (temporary power pole, generator, etc.)
3)
Location and number of parking spaces. Indicate if parking area is paved or unpaved. Indicate all drive approaches. Curb jumping or on-street parking is not permitted.
4)
Location, type and size of signage. One (1) temporary sign is allowed and requires a sign permit (32 square foot maximum).
5)
If a tent is to be erected, a separate tent permit is required.
6)
Electrical permit application for all proposed work. All electrical work shall be performed by a licensed master electrician and shall comply with the electrical Ordinance.
7)
Plumbing permit application for all proposed plumbing work. All plumbing work shall be performed by a licensed master plumber and shall comply with the plumbing Ordinance.
5.
All required permits and inspections shall be completed prior to any seasonal sales lot opening for business.
6.
At no time shall any fire lane or emergency access be blocked or obstructed.
7.
Trees, stands, equipment, trash, signs, lighting and shelters shall be removed by permit holder.
8.
Each temporary seasonal sales permit issued under this division shall be subject to cancellation for violation of any provisions applicable to this policy.
E.
Fruit/Vegetable Stands. Fruit and vegetable stands shall be permitted only with a Specific Use Permit and shall follow the requirements of the Seasonal Use Permit prior to operation.
F.
Asphalt or Concrete Batching Plant (Temporary). A temporary asphalt or concrete batching plant permit may be approved by the Development Review Committee, subject to the following conditions. Any exceptions to the following conditions shall require approval of the City Council.
1.
The batching plant site shall comply with the applicable provisions of City, State and Federal laws.
2.
The batch plant shall not be located within six hundred feet (600') of any inhabited residence, whether in Keller or an adjacent municipality.
3.
Hours of operation will be limited to Monday through Friday, 7:00 a.m. to 7:00 p.m., and Saturday, 9:00 a.m. to 5:00 p.m. Aggregate trucks shall be prohibited from hauling to or from the site on Sunday.
4.
No portion of the batch plant or its operation shall be located on a public street.
5.
The batch plant shall only furnish concrete, asphalt, or both to the specific project for which the temporary permit is issued. The placement of a temporary batching plant for a private project is restricted to the site of the project.
6.
The temporary plant shall be operated in a manner that eliminates unnecessary dust, noise and odor (as illustrated by, but not limited to covering trucks, hoppers, chutes, loading and unloading devices and mixing operations, and maintain driveways and parking areas free of dust).
7.
The site must be clear of all equipment, material and debris upon completion of the project.
8.
All public improvements that are damaged during the operation of the temporary batching plant must be repaired or replaced within thirty (30) days of completion of the project.
9.
Upon expiration of the temporary permit and cessation of activities, the Director of Public Works or his designee and permitee shall walk the site to verify compliance with these special conditions.
G.
Carnival or Circus (Temporary). A temporary use permit for a carnival, circus or special event may be issued by the Building Official, subject to the following conditions:
1.
Applications for a permit shall be made no less than ten (10) days prior to the date such temporary carnival, circus or special event shall commence operation.
2.
The fee for such permit shall be five hundred dollars ($500.00). Non-profit organizations, school districts, and special events such as political rallies, tent meetings, festivals, revivals, bazaars, and other similar activities, shall be exempt from paying said fee.
3.
The application for permit shall contain the following:
a.
Name, address and telephone number of person, organization or company conducting the event.
b.
Date or dates of the carnival, circus, or special event.
c.
A plan showing in detail the different component parts of the temporary carnival, circus, or special event, including all shows, concessions, amusements, businesses and the location of each on the property.
d.
A written lease or agreement from the owner of such property stating permission to the applicant to operate a temporary carnival, circus or special event on said property.
e.
Proposed location and size of parking area.
f.
Location and quantity of sanitary facilities.
g.
The appropriate number of persons who are attending and, if applicable, the number and types of animals and vehicles that will constitute such event.
h.
The location and orientation of loudspeakers or sound amplification devices, if any.
i.
Proof of public liability insurance with minimum combined limits of one million dollars ($1,000,000). However, notwithstanding the foregoing, non-profit organizations, the Keller Independent School District, and special events, such as political rallies, tent meetings, festivals, revivals, bazaars, and other similar activities shall be exempt from providing proof of liability insurance, if there are no mechanical amusement rides or exotic animals, as defined in The City's Code of Ordinances.
j.
Any other information that the City shall deem necessary under the standards for issuance.
4.
Safe and orderly movement of normal traffic shall not be substantially interrupted.
5.
The temporary use shall not impede the movement of fire fighting equipment or ambulances.
6.
Waste from animals shall be removed daily from the premises. Animals shall not be kept closer than three hundred feet (300') to any residence or commercial establishment during non-operating hours of such event.
7.
The application shall be reviewed by the Community Development, Police and Fire Departments for security, fire and safety related issues.
8.
The permit will be valid for a maximum of five (5) days.
H.
Garage Sale. A garage sale shall be subject to the following conditions:
1.
A garage sale shall only be permitted as a temporary accessory use to a single-family detached or single-family attached dwelling.
2.
An individual garage sale shall not exceed three (3) consecutive days.
3.
The number of garage sales shall be limited to two (2) per calendar year per household.
4.
Subdivision/community wide garage sales shall be allowed two (2) per calendar year.
5.
Garage sale signs shall comply with sign regulations of this Code (see Section 9.05).
I.
Radio, Television, Telecommunication, and Microwave Towers.
1.
Notwithstanding any other provision of this Code, telecommunications antennas, when such are permitted by federal law and the laws of the State of Texas, shall be regulated and governed by the following use regulations and requirements:
a.
Telecommunications towers.
1)
Telecommunications towers shall be permitted only with an SUP in any zoning district after the applicant has filed an application in the form required by the City of Keller for such use.
2)
The responses in the application to be submitted shall be complete and satisfy all of the requirements of the application before the application shall be considered to have been submitted and shall also include the following additional requirements:
a)
Tower height, including antenna array, may not exceed one hundred twenty feet (120').
b)
Telecommunications towers must be a minimum of two hundred feet (200') or three (3) to one (1) distance to height ratio, whichever is greater, from structures used for residential purposes.
c)
New telecommunications towers must be a minimum distance of five thousand feet (5,000') from another telecommunications tower.
d)
All guys and guy anchors are located within the buildable area of the lot according to the base zoning of the property on which the tower is proposed to be located and not within the front, rear, or side yard setbacks and no closer than five feet (5') to any property line.
e)
The base of the tower is enclosed by security fencing.
f)
Equipment buildings must be similar in color and character to the main or adjoining building or structure or blend with the landscaping and other surroundings immediately adjacent to it and be screened by a wrought iron fence with evergreen hedge, or a masonry wall.
g)
The tower is erected and operated in compliance with current Federal Communication Commission and Federal Aviation Administration rules and regulations and other applicable federal and state standards.
h)
A telecommunications tower must be:
i.
Used by three (3) or more wireless communications providers; or
ii.
Designed and built so as to be capable of use by three (3) or more wireless communications providers including providers such as cellular or PCS providers using antenna arrays of nine (9) to twelve (12) antennas each within fifteen vertical feet (15') of each other with no more than three degrees (3°) of twist and sway at the top elevation and the owner of the tower and the property on which it is located must certify to the City that the antenna is available for use by another wireless telecommunications provider on a reasonable and nondiscriminatory basis and at a cost not exceeding the market value for the use of the facilities. If the property on which the tower is proposed to be located is to be leased, the portions of the actual or proposed lease that demonstrate compliance with the requirements of this paragraph shall be submitted with the SUP zoning application.
i)
All towers will be of a tapering monopole construction, except that another type tower shall only be allowed upon a showing that it would cause less visual impact on surrounding property than a similar monopole structure.
j)
No lettering, symbols, images, or trademarks large enough to be legible to occupants of vehicular traffic on any adjacent roadway shall be placed on or affixed to any part of a telecommunications tower, antenna array or antenna, other than as required by FCC regulations regarding tower registration or other applicable law.
k)
The need for the requested site and the nature of any existing sites shall be documented as set forth in the application.
l)
Telecommunications towers should be constructed to minimize potential safety hazards. Telecommunications towers shall be constructed so as to meet or exceed the most recent EIA-222 standards and prior to issuance of a building permit the Building Official shall be provided with a Texas registered professional engineer's certification that the tower's design meets or exceeds those standards. Guyed towers shall be located in such a manner that if the structure should fall along its longest dimension, it will remain within property boundaries and avoid habitable structures, public streets, utility lines and other telecommunications towers.
m)
Telecommunications towers and equipment buildings shall be located to minimize their number, height and obtrusiveness to minimize visual impacts on the surrounding area and in accordance with the following requirements:
i.
Ensure that the height of towers and monopoles has the least visual impact and is no greater than required to achieve service area requirements and potential collocation, when visually appropriate.
ii.
Demonstrate that the selected site for a new monopole and tower provides the least visual impact on residential areas and the public rights-of-way. analyze the potential impacts from other vantage points in the area to illustrate that the selected site provides the best opportunity to minimize the visual impact of the proposed facility.
iii.
Site telecommunication facilities to minimize being visually solitary or prominent when viewed from residential areas and the public rights-of- way. the facility should be obscured by vegetation, tree cover, topographic features, and buildings or other structures to the maximum extent practicable.
iv.
Place telecommunication facilities to ensure that historically significant buildings and landscapes are protected. the views of and vistas from architecturally and/or historically significant structures should not be impaired or diminished by the placement of telecommunication facilities.
v.
The commission may recommend a variance and the council may grant a variance to a requirement for telecommunications towers when it is determined that such a variance better accomplishes the city vision than would a strict application of the requirement. such variance shall be no greater than necessary to accomplish those policies.
n)
No signals or lights or illumination shall be permitted on a monopole unless required by the Federal Communications Commission, the Federal Aviation Administration, or the City of Keller.
o)
If any additions, changes, or modifications are to be made to the monopole, the Development Review Committee (DRC) shall have the authority to require proof, through the submission of engineering and structural data, that the addition, change, or modification conforms to structural wind load and all other requirements of the current Building Code adopted by the City of Keller.
p)
Telecommunication tower owners shall submit an annual report of service providers using the tower to the Planning Manager. Telecommunication towers which have not been used for a period of one year shall be removed from a site. The last telecommunication service provider to use a tower shall notify the Planning Manager or designee within thirty (30) days that use of a tower has been discontinued.
q)
Back haul providers shall be identified and have all necessary approvals to operate as such, including holding necessary franchises, permits and certificates and the method of providing back haul, wired or wireless, shall be identified.
r)
The applicant shall fully and accurately complete a questionnaire supplied them by The City of Keller designed to gather information to assist in making a decision regarding the SUP application. In order to assist the staff, the commission and the council in evaluating visual impact the applicant shall submit color photo simulations showing the proposed site of the tower with a photo-realistic representation of the proposed tower as it would appear viewed from the closest residential property and from adjacent roadways.
s)
The tower complies with all ordinances of the City not in conflict with this section.
3)
In addition to the usual application fee, the applicant shall reimburse the City for the actual cost to the City for the services of an engineer should one be required to review the application and provide engineering expertise, up to a maximum of five thousand dollars ($5,000.00).
b.
Antennas mounted on existing structures.
1)
Antennas mounted on buildings.
a)
Roof-mounted telecommunications antennas are allowed on non-residential buildings in all zoning districts without further zoning proceedings, provided a non-whip antenna does not exceed the height of the building by more than ten feet (10') and is screened from view from any adjacent public roadway and provided a whip antenna does not exceed the height of the building by more than fifteen feet (15') and is located no closer than fifteen feet (15') to the perimeter of the building. Prior to installation of a roof- mounted antenna, the department of building inspections shall be provided with an engineer's certification that the roof will support the proposed antenna and associated roof-mounted equipment. Roof-mounted antennas and associated equipment may be screened with enclosures or facades having an appearance that blends with the building on which they are located or by locating them so that they are not visible from an adjacent public roadway. The application process is required for roof-mounted antennas.
b)
Building-mounted telecommunications antennas of the nonwhip type are allowed on nonresidential buildings in all zoning districts without further zoning proceedings, provided the antenna is mounted flush with the exterior of the building so that it projects no more than thirty inches (30") from the surface of the building to which it is attached; and the antenna's appearance is such as to blend with the surrounding surface of the building. This may not be applicable if the extension of the antenna is fully incorporated into a steeple or other component of the building that exceeds thirty inches (30") and will be considered by the DRC on a case-by- case basis.
c)
Associated equipment shall be placed either within the same building or in a separate building which matches the existing building in character and building materials or blends with the landscaping and other surroundings immediately adjacent to the separate building housing the equipment. Associated equipment for roof-mounted antennas may be located on the roof of the building if it is screened from view from any adjacent public roadway.
i.
Telecommunications antennas are allowed without further zoning on existing utility and telecommunications towers and structures exceeding fifty feet (50') in height, provided that the antenna does not exceed the height of the structure by more than ten feet (10') if a non-whip type or fifteen feet (15') if a whip type. Existing utility and telecommunications towers and structures may be rebuilt if necessary to support the load of the new antenna without further zoning if the rebuilt tower or structure is substantially similar in appearance to the existing tower or structure it replaces. Antennas installed on structures in the right-of-way require a license or other authorization from the City of Keller.
ii.
Telecommunications antennas located on existing structures are not subject to the five-thousand-foot separation requirement.
iii.
When an application for a building permit to locate a telecommunications antenna on an existing building or other structure is made, the applicant shall provide (as part of the application) the Department of Community Development with color photo simulations showing the site of the existing structure with a photo-realistic representation of the proposed antenna and the existing structure or any proposed reconstruction of the structure as it would appear viewed from the closest residential property and from adjacent roadways. The applicant shall also submit photographs of the same views showing the current appearance of the site without the proposed antenna.
3.
Telecommunications antennas shall not be constructed or used within the City of Keller without all approvals and permits first having been secured.
4.
Within thirty (30) days of the enactment of this Code and as part of their annual report each January thereafter, providers of personal wireless services, as that term is defined by federal law, operating in the City of Keller shall provide the City with any updates to the above documents.
5.
It shall be an affirmative defense to prosecution for a violation of a provision of this section that compliance with the provision would prohibit or have the effect of prohibiting the provision of personal wireless services as defined by federal law. In addition, any entity that desires to erect or utilize telecommunication facilities that would be prohibited by the ordinances or regulations of the City dealing with zoning and land use may apply for such use and the City Council may, upon a showing that strict application of the regulation would prohibit or have the effect of prohibiting personal wireless service as defined by federal law, vary the subject regulation, consistent with the spirit and intent of this section, to the extent necessary to prevent the prohibition.
J.
Handicap Accessibility. All non-residential buildings and parking areas shall conform to the Americans with Disabilities Act (ADA) of 1991, as may be amended, accessibility guidelines or the Uniform Federal Accessibility Standards.
K.
Minimum Dwelling Unit Area. Minimum dwelling unit areas specified in this Code shall be computed exclusive of breezeways, garages, open porches, carports, and accessory buildings.
L.
Performance Standards.
1.
In all zoning districts, any use indicated in the permitted use list shall conform in operation, location, and construction to the performance standards as administered by the City, County, State, or Federal agencies. All uses, including those, which may be allowed by Planned Development (PD) or Specific Use Permit (SUP), shall conform in operation, location, and construction to appropriate performance standards for noise, smoke, and particulate matter, odorous matter, fire, or explosive hazard material, toxic and noxious matter, vibration, and glare.
2.
All Federal and State pollution, noise, and requirements for toxic waste disposal shall be observed.
M.
Reserved.
N.
Assisted Living Facilities (ALF) (7 or 8 residents) in Single-Family Residential Districts. (Amended by Ord. No. 1809 on September 6, 2016)
1.
General Purpose and Description. Assisted Living Facilities (ALF) in single-family residential areas are intended to promote and encourage alternative and suitable living environments for an aging population and provide another option to maintain family life in Keller. Assisted Living Facilities shall maintain its residential character to blend within residential neighborhoods.
2.
Number of Residents. The regulations listed within this section shall apply to Assisted Living Facilities consisting of more than six (6) residents. The maximum number of residents within an Assisted Living Facility shall be eight (8) persons.
3.
Location of Assisted Living Facilities (ALF).
a.
A Specific Use Permit is required for Assisted Living Facilities consisting of 7 or 8 residents for all properties in any SF zoning districts.
b.
No Assisted Living Facility shall be located within one-half (1/2) mile of another Assisted Living Facility, measured from property line to property line.
4.
Floor Area Requirements.
a.
Minimum house size for an Assisted Living Facility is two thousand four hundred (2,400) square feet.
b.
A minimum bedroom floor area per person shall be required. Floor area requirements shall be measured from interior walls of all rooms, excluding closets, stairs, and thickness of walls, toilet rooms, mechanical rooms, laundry, and corridors.
c.
A minimum of one hundred twenty (120) square feet of interior living space shall be provided per facility resident. Interior living space shall include sleeping space and all other interior space accessible on a regular basis to all facility residents.
d.
A full bathroom with toilet, lavatory, and tub or shower, shall be provided for every bedroom.
5.
New Construction/Redevelopment. All Assisted Living Facilities, either new construction or conversion of an existing single- family residence, shall meet all development standards listed under this section of the UDC.
6.
Building Exterior.
a.
When located in a residential zoning district, all parts of the structure shall be maintained in a character consistent with the residential neighborhood in which it is located in terms of gross floor area, building design and lot coverage.
b.
Assisted Living Facilities shall meet the residential construction standards for residential structures in Section 9.01 (A.1) of the UDC.
c.
Assisted Living Facilities shall meet the height requirements within its respective zoning district.
7.
Landscaping.
a.
A minimum of two (2) large canopy trees with a minimum three-inch (3") caliper shall be planted in the required front yard of all new single-family uses and in the required side yard adjacent to a street of all new single-family uses on corner lots. Existing trees of equal or greater size within the required front yard may be counted toward this requirement.
b.
All Assisted Living Facilities shall comply with the tree preservation requirements for non-residential developments as stated in Section 10.01 (C.3) of the UDC.
8.
Screening/Fencing. Residential fencing shall be required and shall be in accordance with residential fencing standards in Section 9.07 of the UDC.
9.
Accessory Uses.
a.
All accessory structures shall be constructed of materials complimentary to the main structure and shall be subject to the requirements stated in Section 9.06.
b.
Open Space/garden.
c.
No on-site dumpster shall be permitted on the property.
10.
Parking.
a.
Driveways shall be paved with concrete or all-weather surface.
b.
All parking shall be in accordance with the residential parking standards as stated in Section 9.02 of the UDC.
c.
All residential structures shall be returned to its original state prior to its conversion to an Assisted Living Facility if being converted back to a single-family residence.
11.
Signage.
a.
No external (detached monument or attached building) signage shall be allowed. b. No temporary signage shall be allowed.
12.
Site Lighting. Lighting shall be in accordance with the residential lighting and glare standards in Section 9.12(C) of the UDC.
13.
Dumpster. No on-site dumpster shall be permitted on the property.
14.
Fire Protection.
a.
Commercial kitchen are not required. A hood suppression system is required in all kitchens.
b.
Fire suppression system shall be required for all Assisted Living Facilities, regardless of occupancy and/or building square footage. The type of fire suppression system shall be in accordance with International Fire Code (IFC) requirements.
c.
Fire hydrant location and coverage requirements for residential structures as stated in Section 5.16 of the UDC shall be required.
15.
Site Plan Requirement.
a.
All Assisted Living Facilities are required to submit a Site Plan application and meet the application requirements per Section 4.15 of the UDC.
b.
All site plans shall be considered for approval by the City Manager or his/her designee if it complies with best professional practices and meets all applicable requirements of this Code for development.
c.
Any variances would be required to be considered by the Planning and Zoning Commission for recommendation and City Council for approval.
O.
Food Trucks, Food Truck Courts and Mobile Vendors. The purpose of this ordinance is to encourage the operation of Food Trucks in the City of Keller. Though the ordinance does not regulate the use of Food Trucks for private events in residential areas, it does address the use of food trucks, mobile vendors, and food truck courts on private commercial property and on City-owned and/or managed property. To operate in residential areas, food trucks must obtain a state-required fire inspection and Keller Fire Department permit.
Special Event Review Team (SPERT) refers to the group of city employees responsible for reviewing and approving special event permit applications to ensure events are in keeping with city guidelines and policies.
Overnight for the purposes of this section shall mean that sales and/or the distribution of goods shall be limited to the hours between 6:00 a.m. and midnight. A food truck or mobile vendor may set up one (1) hour prior to 6:00 a.m. and must depart by no later than one (1) hour after midnight.
A.
General Operating Requirements:
1.
Food truck or mobile vendors shall obtain a renewable, annual Food Truck and Mobile Vendor Unit permit from the City of Keller before operating in the City.
2.
A fire inspection must be conducted and passed every six (6) months per NFPA 96 (National Fire Protection Association).
3.
Food trucks and mobile vending units may operate for up to eight (8) days per month at the same location unless approved by a Specific Use Permit to operate longer.
4.
All Food Trucks and Mobile Vendor Units shall meet the City of Keller requirements of the most recently adopted applicable International Code Council building codes including the Fire and Electrical Codes.
5.
Electricity shall be from a generator or an electrical outlet. The generator shall be located no less than twenty-five (25) feet from any other food truck, mobile vendor unit, and/or combustibles.
6.
Temporary connections to potable water are prohibited unless specifically designed for food truck hook-ups utilizing food grade water hoses (i.e. Bates Street). Otherwise, water shall be from an internal tank.
7.
A drive-through service is not permitted as part of Food Truck, Mobile Vendor, or Food Truck Court operations.
8.
Food Trucks and Mobile Vendor Units shall be removed from the location on a daily basis and may not be parked overnight unless approved by a SPERT permit. This provision applies to food trucks servicing residential areas as well as all other areas in the City. However, restaurants that also have a food truck service may store their food trucks (when not operating) on the same site as the restaurant as long as the food truck is parked to the side or behind the building and parking requirements for the restaurant can still be met.
9.
Food Trucks and Mobile Vendor Units shall not operate less than ten (10) feet from another food truck, mobile vendor unit or structure.
10.
Food Trucks and Mobile Vendor Units shall not operate:
a)
Within twenty-five (25) feet of any intersection;
b)
Within twenty-five (25) feet of any stop sign, flashing beacon, yield sign, or other traffic control signal located on the side of a roadway;
c)
Within five (5) feet of any public driveway, wheelchair ramp or bicycle ramp;
d)
In any manner that impedes an exit or entrance of an operating building.
e)
In any manner that obscures traffic sight visibility. This includes placement of merchandise, advertising, and/or seating.
f)
Further than one hundred fifty (150) feet from paved fire apparatus access.
11.
All Food Trucks and Mobile Vendor Units shall be equipped with a lidded trash receptacle. The trash receptacle must be placed outside next to the food trucks and mobile vendor units for use by the patrons of the unit. The area, including a 50-foot radius around the Food Trucks and Mobile Vendor Units, shall be kept clean and free from litter, garbage, and debris.
12.
Except as otherwise limited by the City of Keller Code of Ordinances or other City Codes, an individual food truck operator or mobile vendor may utilize outside seating consisting of a portable table and a seating capacity not to exceed eight (8). No furniture or any other objects can be placed in the street, sidewalk, or any right-of-way (ROW).
13.
Owners of any food truck or mobile vendor unit must sign a notarized statement that they acknowledge and accept a minimum amount of $1,000,000 liability insurance, that covers the food truck or mobile vendor, must be maintained at all times and that proof of such insurance coverage can be required to be provided to the City upon three (3) working days' notice to the owner. This requirement may be met with an additional rider on the related automobile insurance.
B.
Food Truck Courts.
1.
Food Truck Courts shall only be permitted by a specific use permit (SUP) in a commercially zoned district (NS, R, C, TC, OTK, KR, LI, and MU-PD). Food Truck Courts shall meet the zoning district regulations in which they are located. Developments that incorporate Food Trucks, Mobile Vendor Units, and/or Food Truck Courts shall be part of an approved Planned Development.
2.
The Certificate of Occupancy shall be obtained and maintained by the Food Truck Court rather than individual vendors.
3.
Water and wastewater hook-ups for all food trucks will be provided and must be utilized. Hose hook-ups to potable water must be of food grade quality.
4.
Food Truck Courts shall provide restrooms and seating for guests.
5.
If the Food Truck Court operates in conjunction with another facility with bathrooms, those bathrooms will suffice for this requirement as long as they meet the current building codes related to capacity for both the facility and the Food Truck Court at full capacity and are accessible during the same operating hours as the Food Truck Court vendors' operating hours.
C.
Provisions for Private Commercial Property (Non-Residential Zoning Districts).
1.
All Food Trucks and Mobile Vendor Units must be located on a parcel which is appropriately zoned for commercial development and use.
2.
Food Trucks and Mobile Vendor Units may not stay overnight.
3.
Food Trucks and Mobile Vendor Units shall be located on an individual private parcel, adjacent to or where, within three hundred (300) feet, an existing permanent business operates in a building with a certificate of occupancy.
4.
Food Trucks and Mobile Vendor Units, including any applicable seating, may operate in parking spaces if the required parking for the center remains in compliance with Keller Unified Development Code Section 9.02 Off-Street Parking and Loading Requirements.
D.
Provisions for City-Owned and/or Managed Property.
1.
A Hold-Harmless Agreement is required to be completed with the City of Keller if the food truck or mobile vendor unit is to be located on City of Keller property.
2.
The City Manager or his/her designee shall have the authority to manage the operation for Food Trucks and Mobile Vendor Units on city-owned and/or managed property. Such property includes but is not limited to Town Hall, Bates Street, Sports Park, Bear Creek Park, and Old Town.
3.
SPERT Permits (Special Permit for Events Review Team) identify the person responsible for each particular event. All Food Trucks and Mobile Vendor Units that are associated with each particular event come under the umbrella of the SPERT permit. Therefore, each vendor does not have to submit an individual permit request for a SPERT event. However, any trucks or vendors participating in a SPERT will need to be registered with the City. (See A.(1) and (2), above.)
E.
Fees. Food Truck and Mobile Vendor permit fees are located in Appendix C - Fee Schedule of the City of Keller Unified Development Code.
(Ord. No. 1891, 6-5-18; Ord. No. 2058, § 3(Exh. A), 4-5-2022; Ord. No. 2104, § 2, 12-6-22; Ord. No. 2225, § 3, 5-20-25)
A.
Purpose. Standards for controlling lighting and glare are set forth to reduce the annoyance and inconvenience to property owners and traffic hazards to motorists. These standards are intended to allow reasonable enjoyment of adjacent and nearby property by their owners and occupants while requiring adequate levels of lighting of parking areas.
B.
Non-Residential Site Lighting and Glare Standards.
1.
A photometric plan is required to be submitted with all site plans for non-residential uses, which are adjacent to residential zoning or use, showing the light intensity within and around the perimeter of the site.
2.
Any use shall be operated so as not to produce obnoxious and intense glare or direct illumination across the bounding property line from a visible source of illumination of such intensity as to create a nuisance or detract from the use or enjoyment of adjacent property. All outside lights shall be made up of a light source and reflector so selected that acting together, the light beam is controlled and not directed across any bounding property line. The allowable maximum intensity measured at the property line of a residential use in a residential district shall be two-tenths (0.2) foot candles. Light poles shall be placed on the site a setback equal to its height from all adjacent residential property. Wall packs shall be designed to match the building in color and shall directly shine down without spill over onto residential properties. Any alternative lighting technique may be considered on a case-by-case basis and approved by City Council at time of site plan review.
3.
All off-street parking areas for non-residential uses, which are used after dark, shall be illuminated beginning one-half (½) hour after sunset and continuing throughout the hours of business operation. If only a portion of a parking area is offered for use after dark, only that part is required to be illuminated in accordance with these standards. However, the portion offered for use shall be clearly designated. Lighting within the parking areas shall meet the following minimum requirements:
a.
Intensity.
1)
Minimum at any point on the parking area surface to be at least six-tenths (0.6) foot candles initial, and at least three-tenths (0.3) foot candles maintained or one-third (⅓) of the average, whichever is greater.
2)
Illumination shall not exceed an average of one (1) foot candle at ground level and shall distribute not more than two-tenths (0.2) foot candles of light upon any adjacent residentially zoned or residentially used property.
b.
A lighting plan shall be submitted with the site plan showing the type, location, and height of fixtures which are adjacent to residential zoning or use. Light poles and fixtures shall be consistent throughout a planned development or property platted as one project. This includes pad sites developed at various times by separate owners within a development.
c.
Light source height shall fit the character of the development as approved by the DRC. Decisions of the DRC may be appealed to the City Council for a final decision. Street lights and other traffic safety lighting are exempt from this standard. Streetlights and other traffic safety lighting are exempt from this standard.
d.
Decorative lighting shall be placed in large parking lots to breakup a vast area of concrete and to provide human scale lighting within the parking lot, building, and adjacent to buildings. The locations will be reviewed at the time of site plan review. Decorative building lighting shall be applicable for a means to break up a massive facade, adjacent to residential zoning or fronting on a thoroughfare.
C.
Residential Lighting and Glare Standards. Residential lighting for security and night recreation use is permitted in all residential districts provided the following requirements are met:
1.
Light source height shall fit the character of the development as approved by the DRC. Decisions of the DRC may be appealed to the City Council for a final decision. Street lights and other traffic safety lighting are exempt from this standard.
2.
Lighting shall not directly shine on adjacent dwellings or produce more than two-tenths (0.2) foot candles of light upon an adjacent property.
D.
Luminaries. Light sources shall be of a down-light type, indirect, diffused, or shielded type luminaries installed and maintained so as to reduce glare effect and consequent interference with use of adjacent properties and boundary streets. Bare bulbs above seventy-five (75) watts and strings of lamps are prohibited except for temporary lighting as provided in this Code.
E.
Special or Temporary Lighting: Low Wattage.
Bare bulbs or strings of lamps are prohibited, except during holidays special lighting shall be permitted for a maximum time period of thirty (30) days for each holiday used. Christmas tree sales lots are considered a temporary holiday use for the purpose of this section.
F.
Permanent Outdoor String Lighting. In the Old Town Keller and Town Center Districts only, the permanent installation of commercial-grade outdoor light strings shall be permitted as landscape accentuation or patio lighting. Such light strings shall be resistant to ultraviolet light exposure and shall have molded bases with weatherproof seals. Only medium base, intermediate base, and candelabra bases are allowed.
(Ord. No. 2104, § 2, 12-6-22)
A shelter for any United States Postal Service (USPS)- required CBUs in districts permitting residential units is required and shall meet the following additional requirements:
A.
Type and Size: The CBU shall be a part of a principal structure (i.e. clubhouse) or a stand alone accessory building (open-air or enclosed) that extends shelter to a minimum of five (5) feet beyond the CBUs' collective footprint. The CBU shall be designed to compliment the development, using similar and complimentary materials and color schemes.
B.
Location: The CBU shall be located on a lot deeded to a homeowners' association or Public Improvement District (PID), whichever is approved by the City Council as the maintenance authority for the subdivision. The CBU, shall be no more than 50 feet from an off-street motorized vehicle parking lot as measured from curb to open-air building footprint or enclosed building entrance.
C.
Parking: In addition to satisfying the minimum and maximum off-street Motorized Vehicle Parking space requirements specified by Section 9.02 for other uses on the lot, the following minimum and maximum off-street short-term (marked and signed for 10-minute maximum) motorized vehicle parking space requirements must also be met:
(Ord. No. 2104, § 2, 12-6-22)
Figure 1 - Lot Width
Figure 2 - Lot Area & Depth
Figure 3 - Yards
Figure 4 - Corner Lots
Figure 5 - Front Yard Where Zoning Changes in a Block
Figure 6 - Double Frontage Lots
Figure 7 - Floor Area Ratios
Figure 8 - Methods of Measuring Front Yards
Figure 9 - Measuring Building Height
Figure 10 - Sign Projections
Figure 11 - Attached Signs Which are Not Permitted
Figure 12 - Monument Sign Requirements
Figure 13 - Off-Street Maneuvering For Loading Area
Figure 14 - 90° Layout
Figure 15 - 45° Layout With Two-Way Traffic
Figure 16 - 60° Layout With Two-Way Traffic
Figure 17 - 45° Layout With One-Way Traffic
Figure 18 - 60° Layout With One-Way Traffic
Figure 19 - Thoroughfare Fencing Detail
Figure 20 - Pedestrian Access for Typical Waste Container Screening Closure
Figure 21 - Typical Waste Container Screening Gate
Figure 22 - Fence and Sight Requirements for Corner Lots
Figure 23 - J-Swing Garage
Figure 24 - Side Entry Garage
Figure 25 Sandwich Board Style Sign
Figure 26 Square Sign Measurement
Figure 27 Irregular Sign Measurement
Figure 28 Letter Sign Measurement
Figure 29 Angle between Sign faces
(Ord. No. 1891, 6-5-2018; Ord. No. 2104, § 2, 12-6-22)