- SPECIFIC RESIDENTIAL USES
Editor's note— Ord. No. 2018-44, § 4, adopted 9-4-2018, Doc. #1809041202, amended the title of Ch. 58, Pt. 3A to read as herein set out. Formerly said Part was entitled accessory apartments. Said Ordinance also amended Part 3A in its entirety.
3B. Townhome Development
Editor's note— Ord. No. 2018-44, § 4, adopted September 4, 2018, Doc. #1809041202, amended the title of Ch. 58, Pt. 3B to read as herein set out. Formerly said Part was entitled Attached Dwelling Development. Said Ordinance also amended Part 3B in its entirety.
Editor's note— Ord. No. 2017-17, § 6, 4-10-2017, Doc. #1704101203, amended the title of Ch. 58, Pt. 3C to read as herein set out. Formerly said Part was entitled Tandem Dwelling Development. Said Ordinance also amended Part 3C in its entirety.
Editor's note— Ord. No. 2016-68, § 3, adopted November 14, 2016, Doc. #1611141201, repealed Ch. 58, Part 3D, §§ 58.520—58.523, in its entirety. Formerly said part pertained to Average-Lot Development and derived from Ord. of 9-16-1991, Doc. #25094 and subsequent amendatory ordinances. See the Code Comparative Table for a complete derivation.
Editor's note— Ord. No. 2016-68, § 4, adopted November 14, 2016, Doc. #1611141201, repealed Ch. 58, Part 3E, §§ 58.530—58.533, in its entirety. Formerly said part pertained to Cluster Development and derived from Ord. of 9-16-1991, Doc. #25094 and subsequent amendatory ordinances. See the Code Comparative Table for a complete derivation.
Editor's note— Ord. No. 2018-45, § 3, adopted August 20, 2018, Doc. #1808201202, repealed the former Ch. 58, Pt. 3F, §§ 58.540—58.544, and enacted a new Ch. 58, Part 3F as set out herein. The former Ch. 58, Pt. 3F pertained to group housing and derived from Ord. of 9-16-1991, Doc. #25094; Ord. 5-20-1996, Doc. #29361.
Editor's note— Ord. No. 2018-44, § 4, adopted 9-4-2018, Doc. #1809041202, amended the title of Ch. 58, Pt. 3H to read as herein set out. Formerly said Part was entitled multi-family (3—5 dwelling units in R-2B zoning district). Said Ordinance also amended Part 3H in its entirety.
Editor's note— Ord. No. 2018-44, § 4, adopted September 4, 2018, Doc. #1809041202, amended the title of Ch. 58, Pt. 3I to read as herein set out. Formerly said Part was entitled Multi-Family Developments Above and Below 75 Feet in Height. Said Ordinance also amended Part 3I in its entirety.
Editor's note— Ord. No. 2018-45, § 3, adopted August 20, 2018, Doc. #1808201202, repealed Ch. 58, Part 3J, §§ 58.580—58.583, which pertained to nursing homes and derived from Ord. of 9-16-1991, Doc. #25094; Ord. 5-20-1996, Doc. #29361.
Editor's note— Ord. No. 2018-45, § 3, adopted August 20, 2018, Doc. #1808201202, repealed Ch. 58, Part 3K, §§ 58.590—58.597 which pertained to residential social service facilities and derived from Ord. of 9-16-1991, Doc. #25094; Ord. of 5-11-1998, Doc. #31215; Ord. of 4-5-1999, § 4, Doc. #32007; Ord. of 1-24-2005, § 8, Doc. #050124909.
Editor's note— Ord. No. 2016-68,§ 5, adopted November 14, 2016, Doc. #1611141201, repealed Ch. 58, Part 3M, §§ 58.610—58.613, in its entirety. Formerly said part pertained to Designed Community and derived from Ord. of 9-16-1991, Doc. #25094 and subsequent amendatory ordinances. See the Code Comparative Table for a complete derivation.
The standards and requirements of this Part are intended to add inexpensive dwelling units to meet the needs of older households, single member households, and single parent households; to make housing available to those persons who might otherwise have difficulty finding homes within the City; and to protect the stability, property values and one-family residential character of neighborhoods by ensuring that accessory apartments are developed only under conditions appropriate to further the purposes of this Chapter. These standards apply to all accessory dwelling units (ADU's) throughout the City
(Ord. of 9-16-1991, Doc. #25094; Ord. No. 2018-44, § 4, 9-4-2018, Doc. #1809041202)
Accessory dwelling units shall conform to all of the general requirements for accessory uses set forth in Part 5 of Chapter 58, the zoning district and use regulations set forth in Figures 1-2, and the following requirements:
A.
Location and Number.
1.
In the O-1 and O-2 zoning districts, only one accessory dwelling unit is permitted on any single family residential building site or an on-site office site, providing it meets the minimum development standards for area shown in the table below.
2.
In the R-2A zoning district, a maximum of two units (a duplex or tandem development) are allowed per Building Site. Accessory Dwelling Units are prohibited on any building site in the R-2A zoning district where there is an existing duplex or tandem dwelling, or in connection with any new duplex or tandem dwelling development.
3.
In the R-2B zoning district, multifamily development (to include ADUs) is permitted if in compliance with Part 3H of Chapter 58.
B.
Conversion to tandem dwelling. On any building site in an R-2A or R-2B district, any new accessory dwelling over 500 sq. ft. and built in connection with a one family dwelling must conform to the standards for tandem dwellings in Part 3C of this Chapter. An existing or new accessory dwelling unit may not be split into a separate lot for purposes of creating a tandem dwelling unless the tandem dwelling standards are met.
C.
Development Standards for ADUs. The following are the development standards for all ADUs.
* All accessory dwelling units must be smaller than the principal structure. Also, see "Lots of Record" subpart below for ADUs on non-conforming lots of record.
† For ADUs in Historic Preservation districts, refer to Sec. 62.706.
** Must comply with Tandem Code - Part 3C of Chapter 58
1.
Maximum Floor Area. Unless limited elsewhere in this Chapter, the maximum floor area ratio for the single family unit plus the ADU cannot exceed 0.50 Floor Area Ratio or the maximum FAR of the principal structure of the zoning district whichever is less. No ADU may be larger than 1,000 sq. ft.
2.
Setbacks. Subject to Modification of Standards (see Sec. 65.302(9)), the setbacks for accessory dwelling units are as follows:
a.
Connected to the principal structure: the same as for the principal structure.
b.
Detached in an accessory building: the same as for all accessory structures. (ADUs that are greater than 500 sq. ft. in all R-2, R-3, MXD, and in Office districts must comply with the setbacks of tandem development - See Part 3C of Chapter 58).
D.
Appearance. ADUs must be designed to appear to be part of a one family dwelling unit. An ADU structure must have the same exterior finish as the principal structure on the same building site and must emulate the architectural style and details of the principal structure into its design. Examples of similar architectural details include, but are not limited to, windows, doors, roof style, cornice detailing, vents, and dormers. An Appearance Review is required prior to approval of building permits. As an alternative to emulating the architecture and finish materials of the principal structure, such design may be approved by the Appearance Review Official (in consultation with the Planning Official) when evidence is provided that demonstrates the architecture of the ADU complements the primary structure and will not be out of character with the surrounding neighborhood.
E.
Building Code. Must comply with the Florida Building Code as well as Section 30A.24 of the City Code.
F.
Parking.
1.
Principal Structure - Each building site must have one parking space and driveway that complied with the Land Development Code at the time the principal structure was constructed.
2.
Larger ADUs - If the ADU is greater than 500 sq. ft. in size, an additional parking space located behind the front yard setback and at least 20 feet from the street side lot line is required. The second required parking space must be in independently accessible to the street and not enclosed within the principal structure.
3.
Smaller ADU Parking Exception - ADUs that are 500 sq. ft. or smaller that have code compliant parking for the principal structure at the time the principal structure was constructed are not required to have an additional parking space for the ADU.
G.
Impact fees. See Chapter 56.
H.
Non-Conforming Lots of Record. Lots of Record that are non-conforming in minimum size may apply for a variance for the addition of an ADU. If approved, the maximum size of the ADU cannot exceed 500 square feet, and the FAR for the principal structure and ADU cannot exceed 0.50.
I.
Compliance with the GMP. Conformance with this Code will be considered compliance with the City of Orlando's Growth Management Plan.
(Ord. of 9-16-1991, Doc. #25094; Ord. 5-20-1996, Doc. #29361; Ord. of 8-6-2007, § 6, Doc. #0708061002; Ord. No. 2018-44, § 4, 9-4-2018, Doc. #1809041202; Ord. No. 2022-29, § 1, 5-16-2022, Doc. #2205161203)
Editor's note— Ord. No. 2018-44, § 4, adopted September 4, 2018, Doc. #1809041202, repealed § 58.502, which pertained to elderly cottage housing opportunity (ECHO housing) and derived from Ord. No. 2010-47, § 2, 10-18-2010, Doc. #1010181112.
A.
Intent. The Townhome Development standards are intended to allow for flexible and creative site planning to facilitate townhome development as a fee simple alternative to conventional single family development. Design flexibility for creative site planning is intended to encourage townhome development that has vehicular access and parking in the rear, setbacks that are compatible with adjacent development, and elevated first floors.
B.
Applicability. Except for townhomes subject to the specific design standards of a planned development zoning district, the standards and requirements of this Part apply to the construction of new townhomes, and substantial improvements or substantial enlargements to existing townhomes.
C.
Conflicts. If any provisions of these regulations are determined to be in conflict with any other City regulation, these regulations prevail except where otherwise specified or regulated by a historic district or other overlay zoning district.
(Ord. of 9-16-1991, Doc. #25094; Ord. of 6-4-2001, § 4, Doc. #33841; Ord. No. 2018-44, § 4, 9-4-2018, Doc. #1809041202)
In addition to the Zoning District and Use Regulations of Figures 1—2 and the standards ordinarily applying to the review of Master Plan and Subdivision Plat applications, the following standards shall apply:
A.
Development Site Standards:
1.
The development shall meet the requirements of Chapter 65, Part 5D (Improvements Retained in Private Ownership), and Part 5E (Maintenance of Common Improvements and Open Space).
2.
The development shall be designed in a manner to adequately protect adjacent land uses, which shall include for this purpose any landscaped bufferyard which may be required by Chapter 60, Part 2 along the boundaries of the development as necessary to ensure compatibility of land uses, which shall be maintained as common or dedicated open space.
3.
Density for townhome units is calculated as follows:
a)
Maximum density is established by dividing the total number of dwelling units by the net area of the development site.
b)
Minimum density is established by dividing 43,560 square feet by the average size of the individual building sites (townhome lots) in square feet.
4.
Impervious Surface Ratio (ISR): Maximum amount must be established consistent with the applicable zoning district. If the development site is below the maximum ISR, any remaining available impervious surface must be allocated to individual lots as part of the master plan or conditional use permit. ISR in the front and street side setbacks cannot exceed 40%, consistent with Section 61.302(f)(2).
5.
Not more than 8 dwelling units may be provided within a single building.
6.
If the development site includes platting new streets, or includes more than 20 dwellings, in addition to the standard parking requirement in Chapter 61 Figure 26, guest parking is required at a ratio of 1 space per 5 dwellings. On-street parking on streets being constructed within the development site may count toward this requirement.
7.
Development sites with 31 to 99 units must provide a minimum of 2 access points to the surrounding street network. One of these access points may be operated as an "Emergency Only" access and may use a stabilized, pervious surface approved by the City Engineer or designee.
8.
Development sites with 100 or more units must provide a minimum of 2 access points with impervious surfaces suitable for all users.
9.
Front-loaded townhomes are prohibited. Driveway and parking access must be from the rear of the unit.
10.
Driveways must meet the following minimum requirements:
a)
The maximum width is 24 feet at the property line.
b)
Up to four units served: The minimum width is 14 feet at the property line, narrowing to 12 feet at a point 15 feet from the property line.
c)
Five or more units served:
i.
One-way (access to two streets): The minimum width is 14 feet at the property line, narrowing to 12 feet at a point 15 feet from the property line.
ii.
Two-way: The minimum width is 20 feet wide at the property line, narrowing to 16 feet at a point 15 feet from the property line.
11.
Maneuvering areas for perpendicular parking spaces must meet the following requirements:
a)
A minimum of 22 feet clear pavement is required behind each parking space. This 22 feet width may be incorporated into the width of a shared driveway or an alley.
b)
The 22-foot width must be measured from the face of the garage door, the back of a carport, or the back of an uncovered parking space, as applicable.
12.
A minimum 2-foot wide clear area must be maintained adjacent to any backing and maneuvering area that is less than 24 feet wide, and along both sides of the driveways throughout the development site.
a)
This area may be decorative pavement, or landscaped with grass or other groundcover.
b)
This area may not contain a fence, wall or landscaping that includes species with mature heights greater than 18 inches.
c)
This area may only be included in the minimum width of any required bufferyard if it is not paved, and if the required landscaping and/or fences can be accommodated outside the clear area.
B.
Building Site Standards:
1.
Minimum lot width: 20 feet
2.
Minimum area each lot: 1,000 square feet
3.
Setbacks:
a)
For street facing units, each unit must meet the setbacks for the applicable zoning district, except that as part of master plan, a modification to the maximum setbacks in AC and MU districts may be allowed in order to provide a landscaped front yard and/or street side yard.
b)
For units facing a courtyard, the perimeter of the development site must meet the applicable setbacks for the zoning district. Individual units need to meet the front and rear setbacks established by the dimensions for courtyards and driveways.
4.
Height limit: Per the applicable zoning district. Roof decks, whether covered or open air, are included within the height of the building at a minimum height of 8 feet.
5.
Building Separation: A minimum 10-foot separation is required between all buildings on the development site.
6.
Frontage requirements. Each unit must be developed consistent with one of the two following options:
a)
Frontage on a public street, or a private street that meets public street design standards.
b)
Frontage onto a courtyard. The courtyard must include the following:
i.
Minimum width of 15 feet if units face one side of the courtyard. If a bufferyard is required, the courtyard must include sufficient landscaping to meet the bufferyard standard. The 15 feet width courtyard can accommodate up to a 5 foot wide buffer. If a wider bufferyard is required, the width of the courtyard must be increased to meet the bufferyard standard.
ii.
Minimum width of 25 feet if units face both sides of the courtyard.
iii.
Minimum 5 foot sidewalk required for the length of the courtyard. The sidewalk must connect the primary pedestrian entrance of each unit to a sidewalk on a public or private street.
iv.
A maximum of 4 units are allowed on a single-sided courtyard that dead-ends into an adjacent development site. See Figure 7E.
v.
Fencing is not required. If included, fences, walls or other privacy barriers must not block access between individual lots on the side of the building where the primary pedestrian entrances are located.
Figure 7E: Townhomes facing a single-sided courtyard
(Ord. of 9-16-1991, Doc. #25094; Ord. of 6-4-2001, § 5, Doc. #33841; Ord. No. 2018-44, § 4, 9-4-2018, Doc. #1809041202)
[A.]
Review process.
1.
Townhomes must follow the procedures for a master plan review as specified under Section 65.331.
2.
If townhomes are a conditional use in the zoning district, in lieu of a master plan, a conditional use permit (CUP) is required per Chapter 65, Part 2D. The zoning districts that require a CUP have a minimum density that is higher than the maximum density for townhome development (at a minimum lot size of 1000 sq. ft. per unit). In order to develop townhomes in these districts, they must be combined with other multifamily uses or non-residential uses on the development site to meet the minimum density or intensity, as described in Section 58.207.
3.
For all townhome development, a subdivision plat establishing fee simple lots is required per Chapter 65, Part 3. The plat must also identify easements, tracts and/or alleys as necessary to provide locations for shared utilities, driveways, and open space. Maintenance agreements for the common areas must also be executed at the time of platting.
[B.]
Developments with Modifications. An applicant proposing a modification from the standards in Part 3B of this Chapter, or the standards described in Section 65.334-1(a), may apply for a Master Plan with Modifications. The following factors will be considered in review of the request:
1.
Neighborhood compatibility.
2.
Site constraints.
3.
Ability to preserve on-site trees or street trees.
4.
Creative architectural design not anticipated by this code.
5.
Ability to provide safe and attractive pedestrian access.
6.
Ability to minimize views of vehicular use areas from the public realm.
7.
Ability to minimize curb cuts and maximize opportunities for street trees and on-street parking.
(Ord. of 9-16-1991, Doc. #25094; Ord. No. 2010-31, § 1, 8-30-2010, Doc. #1008301109; Ord. No. 2018-44, § 4, 9-4-2018, Doc. #1809041202)
To ensure that each townhome development is harmonious and architecturally compatible with existing development in the surrounding neighborhood, an appearance review in accordance with Part 3, Chapter 62 of this Code and the following additional standards are required prior to the issuance of a building permit.
A.
Articulation Each façade that faces a street must include projections or recesses such as a front porch, front stoop, bay window, building recesses, or other feature to diminish the boxy townhome shape.
B.
Orientation All dwellings must include a primary pedestrian entrance that faces a street or a courtyard.
C.
Pedestrian access A pedestrian path from the public sidewalk to the primary pedestrian entrance is required.
D.
Ground floor elevation For street facing dwellings, building foundations must be elevated a minimum of 18" above the finished grade as measured at the front façade of the dwelling.
E.
Porches If constructed, a porch that meets the standards of Section 62.600(g) may encroach up to 6 feet into the required front and street side yard setbacks.
F.
Minimum Landscaping Area Townhomes are required to meet the multifamily standards of the landscaping code (Chapter 60) for the development site as a whole. In addition, stormwater swales or ponds are not allowed in the front or street side setbacks unless low impact design standards for rain gardens are met.
G.
Transparency A minimum 15% transparent materials is required on all façades facing a public street, private street, or courtyard, on each story below the roof line. A minimum 10% transparent materials is required on all interior side façades on each story below the roof line.
H.
Screening of utilities Utilities such as backflow preventers, metering boxes, gang mailboxes, and mechanical equipment must be placed to the side or rear of the site, and must be screened with landscaping, a decorative enclosure, or a wall.
I.
Fire walls Protrusions of fire walls must be minimized and incorporated into the architecture of the building.
J.
Compatibility. The appearance review official will consider the following factors when evaluating the compatibility of townhome development with the surrounding neighborhood:
1.
Logic of overall design.
2.
Site plan.
3.
Landscaping and pervious surface.
4.
Driveway design, circulation and parking.
5.
Environmental features and tree preservation.
6.
Alignment of curb cut(s) to maximize ability to plant street trees and preserve on-street parking.
7.
Where applicable, compliance with the traditional city standards and requirements for residential development in Section 62.600.
8.
Compatibility with adjacent land uses.
9.
Features of existing development and neighborhood form.
The City may also make recommendations pertaining to alternate setbacks and building height. Although these items are regulated by code, adjustments may be appropriate to improve neighborhood compatibility, address site constraints, or improve the design and character of the building.
K.
Architectural Style. Each building must have consistent architectural elements that create a recognizable architectural style, including but not limited to classical revival, colonial revival, craftsman, Florida vernacular, Mediterranean revival, mid-century modern, minimal traditional, Florida ranch, or other style identified in an industry-accepted architectural guidebook. All architectural elements, details, features, and finishes on the exterior of the building must be both consistent and compatible with the architectural style employed. Architectural elements and variations cannot be restricted to a single façade and must be wrapped along the entire length of all street-facing facades. The appearance review official will consider the following elements when evaluating conformance with this requirement:
1.
Roof type, pitch, form, material and overhang
2.
Exterior elevation, materials and finishes
3.
Window proportions, groupings, trim, muntins and details
4.
Column size, taper, base and moulding
5.
Balcony width and depth
6.
Porch width, depth, elevation and railings
7.
Chimney details
8.
Dormers/parapets
9.
Brackets, shutters, railings, rafter tails and decorative details
10.
Transparency
11.
Building projections and recesses
12.
Entryway and front door design
13.
Garage placement and door design
14.
Exterior lighting
15.
Incorporation of architectural features into any fire separation wall
16.
Other generally accepted architectural elements, as determined appropriate by the appearance review official
Together, these elements should create a cohesive structure that avoids boxy, flat facades; highlights architectural features using authentic and durable materials; provides distinct identity to each unit in a manner appropriate to the style employed, and minimizes the visual impact of garages from the public right-of-way.
(Ord. of 9-16-1991, Doc. #25094; Ord. of 6-4-2001, § 6, Doc. #33841; Ord. No. 2018-44, § 4, 9-4-2018, Doc. #1809041202)
(a)
Intent. The standards and requirements of this part are intended to provide flexibility for creative site planning, to expand the choice and type of dwelling units available to the public, to maintain compatibility with, and the integrity of, the neighborhood through architecture and building orientation appropriate to such neighborhoods, to create alternative opportunities for fee simple ownership on real property, and to encourage development of duplex and tandem units that are compatible with adjacent single family homes.
(b)
Applicability. Except for duplex or tandem dwellings subject to the specific design standards of a planned development zoning district, the standards and requirements of this Part apply City-wide to the construction of new duplex and tandem dwellings, and substantial improvements or substantial enlargements to existing duplex and tandem dwellings.
(c)
Conflicts. If any provisions of these regulations are determined to be in conflict with any other City regulation, these regulations shall prevail except where otherwise specified or regulated by a historic district or other overlay zoning district.
(Ord. of 9-16-1991, Doc. #25094; Ord. of 11-28-1994, Doc. #28064; Ord. of 6-4-2001, § 8, Doc. #33841; Ord. No. 2017-17, § 6, 4-10-2017, Doc. #1704101203)
In addition to the Zoning District and the Use Regulations of Figures 1 and 2 and the standards applying to the review of Subdivision Plats, the following standards apply except where otherwise specified or regulated by a historic district or other overlay zoning district:
(a)
Corner building sites in the R-2A District. Duplex dwellings are prohibited on corner building sites in the R-2A district. Tandem dwellings are allowed on corner building sites in the R-2A district.
(b)
Principal pedestrian entrance on corner building sites. Corner building sites shall be developed such that the front dwelling unit has a principal pedestrian entrance oriented towards the front lot line and the rear dwelling unit has a principal pedestrian entrance oriented to the street side lot line.
(c)
Environmental Features. The design of the development shall protect environmental features of significant ecological or amenity value as recognized by this Chapter or the adopted Growth Management Plan. The Design shall to the extent possible retain existing mature canopy and understory trees.
(d)
Adjacent Land Uses. The development shall be designed in a manner compatible with adjacent land uses. Compatibility of design within a neighborhood shall be considered during the review of the development.
(e)
Accessory Building & Structures. Accessory buildings shall be located subject to the requirements of Chapter 58, Part 5A. Walls, fences, and swimming pools may be located on each lot provided they conform to the appropriate regulations contained within this Chapter.
(f)
Duplex Dwellings—Rear Setback. The minimum rear yard setback for a duplex may be reduced by 5 feet if the following conditions are met: (1) the duplex is a front-to-back style, (2) the duplex building site is no more than 55 feet wide, and (3) the building site has a maximum of one detached accessory building that does not exceed 100 sq. ft.
(g)
Street Trees. At least one canopy street tree per 50 feet of street frontage is required. Location and species are required to meet Part 2D, Chapter 62, of this Code. If a canopy tree cannot be installed due to power lines or other constraints, the following requirements apply:
1.
The building site must include understory street trees per location and species as required by Part 2D, Chapter 62, of this Code and
2.
The front yard of the site must include one onsite canopy tree for each canopy street tree that is not installed. This is in addition to the required onsite landscaping per section 60.223 of this Code.
(h)
Court homes are allowed on adjacent building sites.
(Ord. of 9-16-1991, Doc. #25094; Ord. of 11-28-1994, Doc. #28064; Ord. of 6-4-2001, § 9, Doc. #33841; Ord. No. 2017-17, § 6, 4-10-2017, Doc. #1704101203)
Tandem Single Family Development shall comply with the following lot development standards:
(a)
Development Site Standards. Except where otherwise specified or regulated by a historic district or other overlay zoning district, tandem dwellings are permitted on building sites that are otherwise zoned for and meet the building site standards for duplex dwellings. On corner lots outside the R-2A zoning district, tandem dwellings are encouraged in lieu of duplex dwellings.
(b)
Minimum Mean Lot Width: The building site must meet the lot width of applicable zoning district, however each tandem lot may have a lesser width.
(c)
Maximum Residential Density: As permitted by the Code for the applicable zoning district.
(d)
Maximum building size.
1.
The maximum 0.5 floor area ratio must be met on each tandem lot.
2.
On interior lots, the gross square footage of the rear unit cannot exceed the gross square footage of the front unit.
(e)
Maximum Impervious Surface Ratio (ISR): Varies by zoning district. Each created lot shall meet the ISR requirement of the applicable zoning district.
(f)
Minimum Principal Building Separation. There shall be a minimum separation of 10 ft. between buildings/structures, with no less than 5 ft. on each side of the property line.
(g)
Minimum Required Setbacks for Tandem Dwellings.
A.
Lots Resulting from Corner Lot Subdivision (see FIGURE 8A).
1.
Corner unit:
Front yard setback: As per the zoning district
Side yard setback: 5 ft.
Street side yard setback: 15 ft. for living quarters; 20 ft. for vehicular space(s)
Rear yard setback: 5 ft.
2.
Interior unit:
Front yard setback: 15 ft. for living quarters; 20 ft. for vehicular space(s)
Side yard setback: 5 ft. (facing tandem unit) and 15 ft. (facing adjacent lot)
Rear yard setback: 5 ft.
FIGURE 8A. CORNER LOT SUBDIVISION
B.
Lots Resulting from Through Lot Subdivision (see FIGURES 8B & 8C).
1.
Corner unit:
Front yard setback: As per the zoning district
Side yard setback: 5 ft.
Street side yard setback: 15 ft.
Rear yard setback: 5 ft.
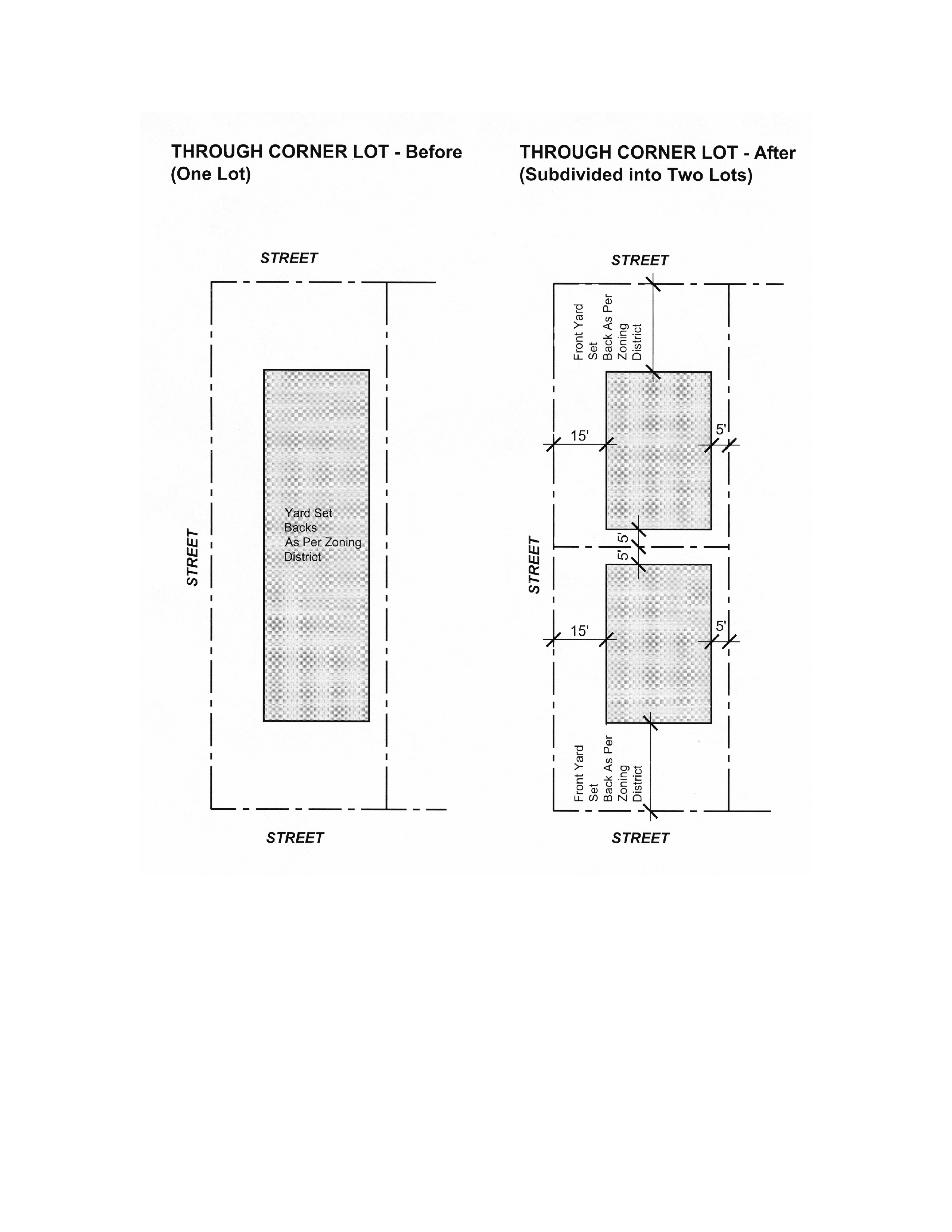
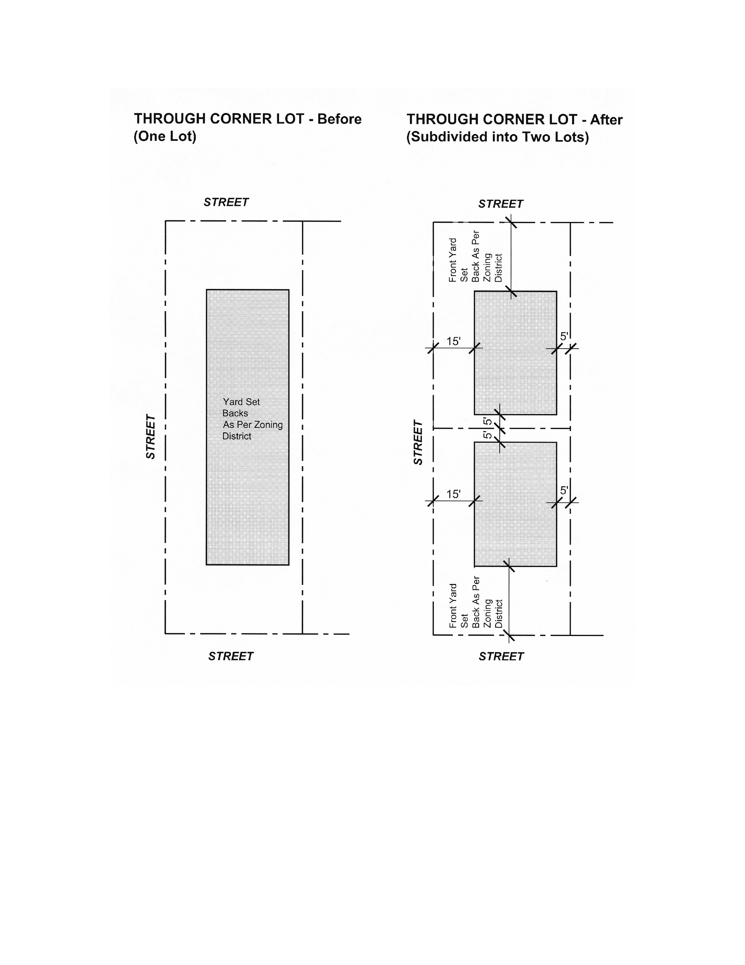
FIGURE 8B: THROUGH LOT SUBDIVISION (CORNER LOT)
2.
Interior unit:
Front yard setback: As per the zoning district
Side yard setback: 5 ft.
Rear yard setback: 5 ft.
FIGURE 8C: THROUGH LOT SUBDIVISION (INTERIOR LOT)

Orientation. The front and front door of any dwelling unit in a Tandem Single Family Development shall be oriented to such dwelling unit's required front yard.
C.
Lots Resulting from Interior Lot Subdivision (see FIGURE 8D)
1.
Front unit:
Front yard setback: As per the zoning district
Side yard setback: As per the zoning district
Rear yard setback: 5 ft.
2.
Rear unit:
Front yard setback: 5 ft.
Side yard setback: As per the zoning district
Rear yard setback: 20 ft.
FIGURE 8D. INTERIOR LOT SUBDIVISION
(Ord. No. 2017-17, § 6, 4-10-2017, Doc. #1704101203)
To ensure that each duplex and tandem dwelling is harmonious and architecturally compatible with existing residential structures in the surrounding neighborhood, an appearance review in accordance with Part 3, Chapter 62 of this Code and the following additional standards are required prior to the issuance of a building permit. These standards apply to the front and side elevations of each building.
(a)
Variety in Design. Duplexes or tandem dwellings with identical front elevations must not be located on adjacent building sites. Simple reverse configurations of the same elevation on adjacent building sites are not sufficient. In order to qualify as a different façade elevation, dwellings must have different roofline configurations. In addition, at least four of the following architectural elements must be different from the adjacent building site(s):
1.
Architectural banding, trim, or cornice detail
2.
Window trim, the number of mullions or muntins, or shutters
3.
Window size and placement
4.
A covered entryway or front porch design
5.
Building projections and recesses
6.
Decorative roofline elements such as brackets or chimneys
7.
Façade articulation such as bay windows or dormers
8.
Exterior color and material
9.
One and two-story units
10.
Other generally accepted architectural elements, as determined appropriate by the Appearance Review Officer
(b)
Side-by-side Duplexes. Such duplexes must not have front elevations that are mirror images. The left side and right side of the building must be designed to include variety in at least three of the following elements:
1.
Roof style
2.
Architectural banding, trim, or cornice detail
3.
Window trim, the number of mullions or muntins, or shutters
4.
Window size and placement
5.
A covered entryway or front porch design
6.
Balconies or juliette balconies
7.
Building projections and recesses
8.
Decorative roofline elements such as brackets or chimneys
9.
Façade articulation such as bay windows or dormers
10.
One and two- story units
11.
Other generally accepted architectural elements, as determined appropriate by the Appearance Review Officer
(c)
Compatibility. The appearance review officer will consider the following factors when evaluating the compatibility of duplex or tandem dwelling development with the surrounding neighborhood:
1.
Logic of overall design
2.
Site plan
3.
Landscaping and pervious surface
4.
Driveway design, circulation and parking
5.
Environmental features and tree preservation
6.
Alignment of curb cut(s) to maximize ability to plant street trees and preserve on-street parking
7.
Compliance with the traditional city standards and requirements for residential development in section 62.600, of this Code.
8.
Compatibility with adjacent land uses
9.
Features of existing development and neighborhood form Staff may also make recommendations pertaining to setbacks and building height. Although these items are regulated by code, adjustments may be appropriate to improve neighborhood compatibility, address site constraints, or improve the design and character of the building.
(d)
Architectural Style. Each building must have consistent architectural elements that create a recognizable architectural style, including but not limited to classical revival, colonial revival, craftsman, Florida vernacular, Mediterranean revival, mid-century modern, minimal traditional, Florida ranch, or other style identified in an industry-accepted architectural guidebook. All architectural elements, details, features, and finishes on the exterior of the building must be both consistent and compatible with the architectural style employed. Architectural elements and variations shall not be restricted to a single façade. The appearance review officer will consider the following elements when evaluating conformance with this requirement:
1.
Roof type, pitch, form, material and overhang
2.
Exterior elevation, materials and finishes
3.
Window proportions, groupings, trim, muntins and details
4.
Column size, taper, base and moulding
5.
Balcony width and depth
6.
Porch width, depth, elevation and railings
7.
Chimney details
8.
Dormers/parapets
9.
Brackets, shutters, railings, rafter tails and decorative details
10.
Transparency
11.
Building projections and recesses
12.
Entryway and front door design
13.
Garage placement and door design
14.
Exterior lighting
15.
Incorporation of architectural features into any fire separation wall
16.
Other generally accepted architectural elements, as determined appropriate by the Appearance Review Officer
Together, these elements should create a cohesive structure that avoids boxy, flat facades; highlights architectural features using authentic and durable materials; and minimizes the visual impact of garages from the public right-of-way.
(e)
Side Elevations. Interior side elevations that do not face a corner must include at least one of the following elements to prevent blank walls:
1.
A minimum of 10% transparent or translucent materials on each story below the roof line; or
2.
Vertical and/or horizontal articulation that includes stepping the wall plane in or out by at least 2 feet according to the following requirements.
i.
The articulation must be provided on one-story walls and on both floors for two-story walls.
ii.
The inset or projection must extend a distance of at least 6 feet along the side property line and may continue another 36 feet of wall length before repeating the articulation.
iii.
Projections designed to accomplish the articulation requirement must meet the required side setback.
(f)
Design Variances. An applicant proposing to construct a duplex or tandem that does not comply with the standards in this section may apply for a design variance from the design review and development standards this Code. The following factors will be considered in review of the request:
1.
Neighborhood compatibility
2.
Site constraints
3.
Ability to preserve on-site trees or street trees
4.
Creative architectural design not anticipated by this code
(Ord. No. 2017-17, § 6, 4-10-2017, Doc. #1704101203)
(a)
Intent. The duplex and tandem dwelling lot split standards are intended to allow each dwelling unit within an existing duplex dwelling building site (including those that may currently be in condominium ownership and existing nonconforming side-by-side duplexes and court homes) to be converted to fee-simple ownership, similar to attached dwelling developments (see Part 3B of this Chapter), where such use is otherwise permitted by this Code. These standards are also intended to ensure proper and functional design. In order to ensure maintenance of common areas within duplex dwelling developments, the City encourages fee simple owners to record clear covenants, conditions, and restrictions for maintenance of common areas and common facilities.
(b)
Process. Duplex and tandem dwelling lot splits may be approved in conjunction with a subdivision plat or lot split approval wherever such dwellings are permitted by this Code. An applicant wishing to undertake a duplex or tandem dwelling lot split shall specifically request such approval in conjunction with an application for plat or lot split approval. All applications shall include a detailed site plan, with building elevations, for appearance and neighborhood compatibility review.
(c)
Effect of Approval. Where a subdivision plat has been approved for a duplex or tandem dwelling lot split development, the final plat must substantially conform to the duplex or tandem dwelling lot split approval. No building permit will be issued for any duplex or tandem dwelling lot split development except in accordance with the approved subdivision plat or lot split.
(d)
Ownership and Maintenance of Common Areas and Structures. Common areas and structures must meet the requirements of Part 5D, Chapter 65 of this Code (Improvements Retained in Private Ownership) and Part 5E of this Code, (Maintenance of Common Improvements and Open Space).
(e)
Building Site Standards. In order to establish two separate lots, the duplex or tandem dwelling building site must conform to the following minimum standards:
1.
The duplex or tandem dwelling building site must conform with section 58.110, Figure 1 for two family conventional development in the zoning district in which it is located, or
2.
Must be a legal non-conforming dwelling or lot of record.
(f)
Lot Standards. Both lots within a building site must comply with the following minimum standards:
1.
Minimum lot area for each dwelling is 2,000 sq. ft.
2.
Front-to back lots are not required to have street frontage for the rear lot, but must include a vehicular cross-access easement to the right-of-way.
3.
No existing accessory dwelling unit in an R-2A or R-2B district may be converted to a tandem dwelling unless it conforms to the development standards for tandem dwellings.
(g)
Duplex Dwelling Development Standards. Duplex dwelling lot split developments must conform to all of the following additional standards:
1.
The original undivided lot is considered one unified parcel or building site for zoning purposes.
2.
Utility lines must either be separate and independent, or for any shared utility, must have a joint maintenance agreement.
(Ord. No. 2017-17, § 6, 4-10-2017, Doc. #1704101203)
All congregate living facilities allowed under this Chapter must conform to the Zoning District and Use Regulations of Figures 1—2 and shall be classified into four categories as follows.
1 An assisted living facility with 14 or fewer residents that is licensed by the State of Florida to provide extended congregate care services, limited nursing services, or limited mental health services shall still be considered a residential care facility for the purposes of this Section
2 When a facility that otherwise would be considered a congregate living facility meets the criteria contained in the "single family" row, the facility shall not be considered a congregate living facility and shall be considered a permitted use in all zoning districts and housing types where residential dwelling units are allowed.
(Ord. No. 2018-45, § 3, 8-20-2018, Doc. #1808201202)
A.
Neighborhood Compatibility. In R-1AA, R-1A, R-1, R-1N, R-2A, and R-2B zoning districts, where permitted or conditionally permitted by Chapter 58, Figure 2, the external appearance of congregate living facility structures and building sites must maintain the general residential character of the district. Exterior building materials, bulk, landscaping, fences and walls, and general design must be similar to and compatible with those of surrounding dwellings.
B.
Intensity of Development. In order to ensure that the intensity of congregate living facilities remains in keeping with other development allowed under this Chapter, all congregate living facilities must conform to the Zoning District and Use Regulations for the district in which they are located, and must, in particular, conform to the lot area, mean lot width, building site frontage, density and maximum dwelling units per building site requirements. Minimum density requirements shall not apply when a Type A, B, or C congregate living facility is the principal use of a building site.
1.
Maximum density Group Housing and Nursing Homes: every 2.5 residents (rated patron capacity) are considered one dwelling unit.
2.
Maximum density all other Congregate Living Facilities: the first 6 residents (rated patron capacity) are considered one dwelling unit and each additional 3 residents thereafter are deemed to equal one additional dwelling unit.
C.
Signs. In order to preserve the general appearance of the neighborhood as a primarily one and two family residential area, no signs for congregate living facilities are permitted in R-1, R-1N, R-1A, R-1AA, R-2A or R-2B zoning districts. Signs in other districts are allowed in accordance with Chapter 64.
D.
Other Uses. Other uses associated with a congregate living facility, including child or adult day care facilities for children and adults who do not live in the facility, may be permitted when otherwise allowed in the zoning district.
E.
Conformance with State Regulations. In addition to the requirements of this Chapter, all congregate living facilities must comply with the statutes and regulations of the State of Florida for the most closely analogous group care categories, whether or not such facilities are licensed and regulated by the State. Applicable state statutes and regulations are deemed a part of this Chapter.
(Ord. No. 2018-45, § 3, 8-20-2018, Doc. #1808201202)
Where a conditional use permit is required to establish a congregate living facility in a zoning district, or to waive a distance separation requirement, the Municipal Planning Board and City Council shall consider the factors and standards applicable to all conditional use permits and may prescribe appropriate conditions and safeguards as stated in Chapter 65, Part 2D. In addition to the factors and standards in Chapter 65, Part 2D, the Municipal Planning Board and City Council shall use the following review criteria to determine the appropriateness of conditional use permit applications for congregate living facilities:
A.
Concentration Discouraged. The regulations of this Part are designed, in part, to limit the concentration of congregate living facilities in one distinct geographical area and encourage the dispersal of such uses throughout all residential neighborhoods in the City. In analyzing a request for a conditional use permit, particularly a conditional use permit to waive a separation distance for a group care facility, the Municipal Planning Board and City Council must consider the number, type, intensity, and proximity of existing congregate living facilities in the surrounding neighborhood as well as existing development patterns and any mitigating factors that may lessen the impacts of such a concentration.
B.
Design of Facility. The architectural style, building materials, massing, height, location and design of parking facilities and vehicular use areas, ingress, egress, on-site circulation, landscaping, and storm water retention/detention areas shall be designed to integrate into the surrounding neighborhood, mitigate impacts of noise and traffic to levels associated with permitted uses in the zoning district, and enhance the safety of both congregate living residents and residential neighbors.
C.
Findings for Denial of the CUP request. When the Municipal Planning Board and City Council find that a proposed location for a congregate living facility would substantially alter the nature and character of an area by creating a concentration of such facilities, the conditional use permit may be denied, except when such denial would violate protections provided under the state or federal Fair Housing Acts, the Americans with Disabilities Act, the Rehabilitation Act, or other state and federal laws regarding these types of uses.
(Ord. No. 2018-45, § 3, 8-20-2018, Doc. #1808201202)
A.
Determination Required. Prior to the establishment of a group housing facility, or conversion to group housing, Type A, B or C, the owner and the operator shall be responsible for securing a Zoning Official Determination. A new determination in the name of a new owner or operator shall be required in the event of a change in ownership or leasehold interest in a group housing facility.
B.
Determination Renewal. The group housing determination must be renewed at least annually on or before October 1st of each year.
C.
Inspections Required For Determination. Application for a determination for group housing not in existence at the time of the original effective date of these group housing regulations shall be conditioned upon all inspections, reviews, plans and other documents or items required by the Zoning Official, including a floor plan indicating the placement of beds within the structure, being secured and approved before the owner, operator or user begins use of the land for group housing. The following required inspections shall be conducted prior to the issuance of a determination for group housing under this Part:
1.
An inspection by City minimum housing code enforcement staff to ascertain the maximum number of occupants of the group housing facility and compliance with all other provisions of the City Minimum Housing Standards Code.
2.
An inspection, review of any required plans, and installation of all improvements necessary for the group housing to secure the determination specified herein and to comply with the provisions of this Chapter and any other City development standards.
3.
An inspection by City fire prevention inspectors to ascertain compliance with the Fire Safety Code of the City of Orlando.
4.
Application for and securing the appropriate required Business Tax Receipt (BTR).
5.
A determination by the State officials that an inspection has been accomplished in accordance with state law or is not required for the particular group housing facility.
6.
Securing any and all other City, County, County Health Department, and State compliances, approvals, inspections or permits.
D.
Evidence of Determination. The existence of a valid determination must be evidenced in a form and manner specified by the Zoning Official and must be presented if requested. This evidence of the existence of a valid City of Orlando determination must include the stated capacity for the group housing facility.
E.
Existing Group Housing Must Obtain Determination. Any group housing existing and operating at the time of the original effective date of these group housing regulations shall be required to secure a permit and apply for all inspections and land use approvals set forth herein, or cease operating as a group housing facility.
(Ord. No. 2018-45, § 3, 8-20-2018, Doc. #1808201202)
A.
Distance Separation Determination Required. The group care facility shall receive a Zoning Official Determination prior to the issuance of any building permit or business tax receipt for the facility, to ensure compliance with the distance separation requirements of Section 58.545. Prior to reviewing the proposed use for compliance with the distance separation requirements, the Zoning Official shall first make a determination on what level of care the facility is being proposed (residential, intensive, or transient) and whether or not the facility is a Type A, B, or C, using the classification chart in 58.540, the definitions in Chapter 66, and any relevant information from a state licensing agency.
B.
Business Tax Receipt Required. No group care facility shall operate without obtaining and annually renewing a Business Tax Receipt (BTR) from the Permitting Division.
(Ord. No. 2018-45, § 3, 8-20-2018, Doc. #1808201202)
A.
Type A Group Care Facilities
1.
Minimum Distance Between Facilities: In one and two family residential zoning districts, no Type A group care facility shall be located within a radius of 1,000 feet of another group care facility.
2.
Multi-Family Developments: No Type A group care facility proposed to locate within a multi-family dwelling unit shall cause the total number of Type A group care facilities to exceed 3.0 percent of all dwelling units on a development site, or six units, whichever is greater.
B.
Type B and C Group Care Facilities (7 or more residents)
1.
Minimum Distance Between Facilities: No Type B or C group care facility shall be located within a radius of 1200 feet of another existing group care facility.
2.
Distance from One and Two Family Zoning Districts: A Type B or C group care facility is presumed to substantially alter the nature and character of the area and shall not be located within 500 feet of an R-1AA, R-1A, R-1, R-1N, R-2A, or R-2B zoning district or property designated for single-family uses in an approved PD.
C.
Waivers. Waivers to the distance separation requirements of this Section may be approved through the conditional use permit process (see Section 58.542).
(Ord. No. 2018-45, § 3, 8-20-2018, Doc. #1808201202)
In addition to the Zoning District and Use Regulations of Figures 1—2, all Mobile Home Developments shall be designed and developed in accordance with the following:
Growth Management Plan. All Mobile Home Developments shall be designed and developed in a manner consistent with the City's adopted Growth Management Plan.
Subdivision Design Standards. All Mobile Home Developments shall be designed in accordance with the subdivision design requirements of Chapter 65, Part 3.
Street Design Standards. Streets within Mobile Home Developments may be public or private, but in no case shall any mobile home space take direct access from any external street or thoroughfare. All streets in Mobile Home Developments shall be designed in accordance with Chapter 61, Part 2.
Required Improvements. All Mobile Home Developments shall be provided with the improvements required by any other applicable Part of this Chapter.
(Ord. of 9-16-1991, Doc. #25094)
In addition to the Zoning District and Use Regulations of Figures 1—3 and the standards ordinarily applying to the review of Subdivision Plat applications, the following standards shall apply:
Perimeter Setbacks. The area devoted to perimeter and thoroughfare setbacks shall not be considered to be part of any mobile home space, nor shall any structure be located in the setback area. All perimeter and thoroughfare setbacks shall be landscaped in accordance with the Bufferyard standards set forth in Chapter 60.
Access to Mobile Home Spaces. Each mobile home space in a Mobile House Development shall have unobstructed access at least 15 feet wide to a public or private street within the boundary of the Mobile Home Development which shall have unobstructed access to an exterior public street. No mobile home space shall be directly accessible from any exterior street, alley or thoroughfare.
Accessory Structures. An accessory structure when attached to a mobile home shall for purposes of separation requirements be considered to be part of the mobile home. No detached accessory structure shall be located on the front half of a mobile home space.
Foundation and Skirting. Each mobile home shall be placed on a foundation or tied down in accordance with building code or other applicable law and provided with skirting.
Recreational Vehicles Prohibited. Recreational Vehicles shall be prohibited as a principal use in any Mobile Home Development, except in a separate designated area designed and maintained in accordance with the Recreational Vehicle Park regulations set forth in Part 4I of Chapter 58.
(Ord. of 9-16-1991, Doc. #25094)
No park shall be available for use or occupancy prior to the issuance of a certificate of occupancy by the City, and no certificate of occupancy shall be issued unless the park has complied with all provisions of this Part. In addition, the following standards shall apply:
(a)
Only one mobile home containing a single family dwelling unit shall be permitted on each mobile home space.
(b)
No portion of a park shall be intended for occupancy less than 30 days.
(c)
A mobile home shall not be occupied for dwelling purposes unless it is properly placed on a mobile home stand and connected to water, sewerage and electrical utilities and tied down according to Building Code standards.
(Ord. of 9-16-1991, Doc. #25094)
The licensee or permittee or duly authorized attendant, caretaker or resident manager shall be in charge at all times to keep the mobile home development, its facilities and equipment in a clean, orderly and sanitary condition. The attendant, caretaker or resident manager shall be answerable, with the licensee or permittee, for the violations of any provision of this Ordinance to which the licensee or permittee is subject.
(Ord. of 9-16-1991, Doc. #25094)
Mobile Home Development may be approved in connection with Preliminary Subdivision or Minor Plat approval wherever such development is permitted under this Chapter. An applicant wishing to undertake Mobile Home Development shall specifically request such approval in connection with application for Preliminary Subdivision or Minor Plat approval.
(Ord. of 9-16-1991, Doc. #25094; Ord. No. 2010-31, § 1, 8-30-2010, Doc. #1008301109)
Multiplex standards of this Part are intended to conserve the general character of established neighborhoods which have developed as a mixture of single family dwelling units, duplexes, and small apartment buildings of 3 to 8 dwelling units. New development shall maintain the prevailing bulk, height, and general design of the surrounding structures and buildings. This type has the appearance of a medium-sized single family home or multiple small-scale structures and is appropriately scaled to fit within primarily single-family neighborhoods or into medium-density neighborhoods. This type enables appropriately-scaled, well-designed higher densities and is important for providing a broad choice of housing types and promoting infill development.
(Ord. of 9-16-1991, Doc. #25094; Ord. 5-20-1996, Doc. #29361; Ord. No. 2018-44, § 4, 9-4-2018, Doc. #1809041202)
In addition to the Zoning District and Use Regulations of Figures 1—2 and Traditional City standards where applicable, the development shall conform to all of the review standards set forth in Part 3 of Chapter 65.
(Ord. of 9-16-1991, Doc. #25094; Ord. 5-20-1996, Doc. #29361)
Standards.
A.
Minimum Lot Size Standards. Meet the minimum lot depth and minimum site frontage standards for that zoning district.
B.
Maximum Residential Density. Determined by the maximum density of each zoning district. If the result is a decimal, densities with 0.5 or higher may be rounded up to the nearest whole number. R-2B lots are limited to 5 units.
C.
Unit size. The majority of units on a single development site must be 750 square feet or less, or comply with multi-family regulations.
D.
Building Setbacks. Defaults to zoning district.
E.
Minimum Building Separation. 10 feet.
F.
Frontage Requirements. The front door of the unit(s) facing the primary street frontage must face the street. Rear units may face the front of the lot or may be side-oriented to face other units. Rear-facing units are not allowed.
G.
Vehicular Use Area. Parking is not permitted between the front building(s) and the street, but is permitted on the side and the rear of the building(s).
H.
Pedestrian Access. A pedestrian path from the public sidewalk to the primary pedestrian entrance is required for the unit(s) facing the primary street frontage.
I.
Building Height. The maximum height defaults to the zoning district or three-stories, whichever is less.
J.
Single-Family Home or Duplex Preservation. A master plan application is required for eligible sites that desire to expand beyond the existing one family or two family unit(s).
1.
Each new unit will be limited to 750 square feet.
2.
In historic districts, the existing structures must be preserved and maintained, unless otherwise approved by the Historic Preservation Board.
K.
Driveways. Driveways must meet the following minimum requirements:
1.
The maximum width is 24 feet at the property line.
2.
Up to four units served: The minimum width is 14 feet at the property line, narrowing to 12 feet at a point 15 feet from the property line.
3.
Five or more units served:
a)
One-way (access to two streets): The minimum width is 14 feet at the property line, narrowing to 12 feet at a point 15 feet from the property line.
b)
Two-way: The minimum width is 20 feet wide at the property line, narrowing to 16 feet at a point 15 feet from the property line.
4.
For preservation of existing structures or significant trees, modifications may be granted by the Transportation Official through the master plan application.
L.
Maneuvering areas for perpendicular parking spaces must meet the following requirements:
1.
A minimum of 22 feet clear pavement is required behind each parking space. This 22 feet width may be incorporated into the width of a shared driveway or an alley.
2.
The 22-foot width is measured from the face of the garage door, the back of a carport, or the back of an uncovered parking space, as applicable.
M.
A minimum 2-foot wide clear area must be maintained adjacent to any backing and maneuvering area that is less than 24 feet wide, and along both sides of the driveways throughout the development site.
1.
This area may be decorative pavement, or landscaped with grass or other groundcover.
2.
This area may not contain a fence, wall or landscaping that includes species with mature heights greater than 18 inches.
3.
This area may only be included in the minimum width of any required bufferyard if it is not paved, and if the required landscaping and/or fences can be accommodated outside the clear area.
N.
Multiplex developments must follow the procedures for a master plan review as specified under Section 65.331.
(Ord. of 9-16-1991, Doc. #25094; Ord. 5-20-1996, Doc. #29361; Ord. No. 2018-44, § 4, 9-4-2018, Doc. #1809041202)
A.
Articulation. Each façade that faces a street must include projections or recesses such as a front porch, front stoop, bay window, building recesses, or other feature to prevent a boxy shape.
B.
Orientation. All buildings must include a primary pedestrian entrance that faces a street. For projects with multiple principal buildings, the front units must face the street, while more flexibility will be allowed for the internal and rear units.
C.
Transparency. A minimum 15% transparent material is required on all façades facing a public street, private street, or courtyard, on each story below the roof line. A minimum 10% transparent material is required on all interior side façades on each story below the roof line.
D.
Landscaping. Multiplex developments are required to meet the multi-family standards of the landscaping code (Chapter 60) for the development site as a whole. In addition, stormwater swales or ponds are not allowed in the front or street side setbacks unless low impact design standards for rain gardens are met.
E.
Mechanical Equipment Screening. Utilities such as backflow preventers, metering boxes, gang mailboxes, and mechanical equipment must be placed to the side or rear of the site, and must be screened with landscaping, a decorative enclosure, or a wall.
F.
Compatibility. The appearance review official will consider the following factors when evaluating the compatibility of multiplex development with the surrounding neighborhood:
1.
Logic of overall design.
2.
Site plan.
3.
Landscaping and pervious surface.
4.
Driveway design, circulation and parking.
5.
Environmental features and tree preservation.
6.
Alignment of curb cut(s) to maximize ability to plant street trees and preserve on-street parking.
7.
Where applicable, compliance with the traditional city standards and requirements for residential development in Section 62.600.
8.
Compatibility with adjacent land uses.
9.
Features of existing development and neighborhood form.
The City may also make recommendations pertaining to alternate setbacks and building height. Although these items are regulated by code, adjustments may be appropriate to improve neighborhood compatibility, address site constraints, or improve the design and character of the building.
G.
Architectural Style. Each building must have consistent architectural elements that create a recognizable architectural style, including but not limited to classical revival, colonial revival, craftsman, Florida vernacular, Mediterranean revival, mid-century modern, minimal traditional, Florida ranch, or other style identified in an industry-accepted architectural guidebook. All architectural elements, details, features, and finishes on the exterior of the building must be both consistent and compatible with the architectural style employed. Architectural elements and variations cannot be restricted to a single façade and must be wrapped along the entire length of all street-facing facades. The appearance review official will consider the following elements when evaluating conformance with this requirement:
1.
Roof type, pitch, form, material and overhang.
2.
Exterior elevation, materials and finishes.
3.
Window proportions, groupings, trim, muntins and details.
4.
Column size, taper, base and moulding.
5.
Balcony width and depth.
6.
Porch width, depth, elevation and railings.
7.
Chimney details.
8.
Dormers/parapets.
9.
Brackets, shutters, railings, rafter tails and decorative details.
10.
Transparency.
11.
Building projections and recesses.
12.
Entryway and front door design.
13.
Garage placement and door design.
14.
Exterior lighting.
15.
Incorporation of architectural features into any fire separation wall.
16.
Other generally accepted architectural elements, as determined appropriate by the appearance review official.
Together, these elements should create a cohesive structure that avoids boxy, flat facades; highlights architectural features using authentic and durable materials; provides distinct identity to each unit in a manner appropriate to the style employed; and minimizes the visual impact of garages from the public right-of-way.
(Ord. No. 2018-44, § 4, 9-4-2018, Doc. #1809041202)
Multi-family standards of this Part are intended to provide flexible building and site design in locations where residential redevelopment and development is desired at medium to high intensity.
(Ord. of 9-16-1991, Doc. #25094; Ord. No. 2018-44, § 4, 9-4-2018, Doc. #1809041202)
In addition to the Zoning District and Use Regulation of Figures 1—2 and Traditional City Standards where applicable, the development shall conform to all of the review standards set forth in Part 3 of Chapter 65.
(Ord. of 9-16-1991, Doc. #25094)
A.
Minimum Lot Size Standards. Must meet the minimum lot depth and site frontage standards for that zoning district.
B.
Frontage Requirements. The front unit(s) must face the front. Each unit must be developed consistent with one of the two following options:
1.
Frontage on a public street, or a private street that meets public street design standards.
2.
Modifications may be granted through the master plan application for rear units to front on a courtyard or a water body.
C.
Pedestrian Access. A pedestrian path from the public sidewalk to the primary pedestrian entrance is required.
D.
Building Setbacks. For street facing units, each unit must meet the setbacks for the applicable zoning district, except that as part of master plan or CUP review, maximum setbacks in AC and MU districts may be increased to provide a landscaped front yard and/or street side yard.
E.
Vehicular Use Area. Parking is not permitted between the building and the street, but is permitted on the side and rear of the building.
F.
Vehicular Access for 31 to 99 units. Development sites with 31 to 99 units must provide a minimum of 2 access points to the surrounding street network. One of these access points may be operated as an "Emergency Only" access and may use a stabilized, pervious surface approved by the City Engineer.
G.
Vehicular Access for 100 or more units. Development sites with 100 or more units must provide a minimum of 2 access points with impervious surfaces suitable for all users.
H.
Cross Access. Each project must provide cross access to adjacent properties, unless wetlands, lakes, limited access highways or other physical barriers prevent connectivity, as required by GMP Transportation Policy 1.10.5.
I.
Minimum Building Separation. 20 ft.
J.
Residential Zoning District Setback. 20 ft.
K.
Pedestrian Circulation. A network of pedestrian connections must be designed to connect all entrances of each building to the right-of-way, as required by Section 61.314(a) and (c).
L.
Crosswalks. All crosswalks at driveways and curb cuts must be designed with pavers and/or textured colored concrete or similar to clearly define the pedestrian zone, as required by Section 61.314(e). Thermoplastic paint may be incorporated, but cannot meet this condition alone.
(Ord. of 9-16-1991, Doc. #25094; Ord. 5-20-1996, Doc. #29361; Ord. No. 2018-44, § 4, 9-4-2018, Doc. #1809041202)
A.
Articulation. Each façade that faces a street must include projections or recesses such as a front porch, front stoop, bay window, building recesses, or other feature to prevent a boxy shape.
B.
Transparency. A minimum 15% transparent material is required on all façades facing a public street, private street, or courtyard, on each story below the roof line. A minimum 10% transparent material is required on all interior side façades on each story below the roof line.
C.
Landscaping. Developments are required to meet the multi-family standards of the landscaping code (Chapter 60) for the development site as a whole. In addition, stormwater swales or ponds are not allowed in the front or street side setbacks unless low impact design standards for rain gardens are met.
D.
Mechanical Equipment Screening. Utilities such as backflow preventers, metering boxes, gang mailboxes, and mechanical equipment must be placed to the side or rear of the site, and must be screened with landscaping, a decorative enclosure, or a wall.
E.
Compatibility. The appearance review official will consider the following factors when evaluating the compatibility of the development with the surrounding neighborhood:
1.
Logic of overall design.
2.
Site plan.
3.
Landscaping and pervious surface.
4.
Driveway design, circulation and parking.
5.
Environmental features and tree preservation.
6.
Alignment of curb cut(s) to maximize ability to plant street trees and preserve on-street parking.
7.
Where applicable, compliance with the traditional city standards and requirements for residential development in Section 62.600, of this Code.
8.
Compatibility with adjacent land uses.
9.
Features of existing development and neighborhood form.
Staff may also make recommendations pertaining to alternate setbacks and building height. Although these items are regulated by code, adjustments may be appropriate to improve neighborhood compatibility, address site constraints, or improve the design and character of the building.
F.
Architectural Style. Each building must have consistent architectural elements that create a recognizable architectural style, including but not limited to classical revival, colonial revival, craftsman, Florida vernacular, Mediterranean revival, mid-century modern, minimal traditional, Florida ranch, or other style identified in an industry-accepted architectural guidebook. All architectural elements, details, features, and finishes on the exterior of the building must be both consistent and compatible with the architectural style employed. Architectural elements and variations must not be restricted to a single façade and must be wrapped along the entire length of all street-facing facades. The appearance review official will consider the following elements when evaluating conformance with this requirement:
1.
Roof type, pitch, form, material and overhang.
2.
Exterior elevation, materials and finishes.
3.
Window proportions, groupings, trim, muntins and details.
4.
Column size, taper, base and moulding.
5.
Balcony width and depth.
6.
Porch width, depth, elevation and railings.
7.
Chimney details.
Together, these elements should create a cohesive structure that avoids boxy, flat facades; highlights architectural features using authentic and durable materials; provides distinct identity to each unit in a manner appropriate to the style employed, and minimizes the visual impact of garages from the public right-of-way.
(Ord. No. 2018-44, § 4, 9-4-2018, Doc. #1809041202)
The Zero-Lot-Line Development standards of this Section are intended to promote:
(a)
the more efficient use of land, as compared with the typical single-family development, making available needed housing at a more affordable cost;
(b)
the design of dwellings that integrate and relate internal-external living areas resulting in more pleasant and enjoyable living facilities; and
(c)
by placing the dwelling against one of the property lines, permitting outdoor space to be grouped and utilized to its maximum benefit.
(Ord. of 9-16-1991, Doc. #25094)
In addition to the Zoning District and Use Regulations of Figures 1—2 and the standards ordinarily applying to the review of Subdivision Plat applications, the following standards shall apply:
Townhome Development Standards. The development shall conform to the applicable review standards for Townhome Development set forth in Chapter 58, Part 3B except that accessory buildings may be located outside of building restriction lines. Decks may be constructed in up to fifty (50) percent of any required side yard setback.
Building Design. Along any Zero-Lot-Line yard, the wall of any dwelling unit shall be constructed without doors. No portion of the dwelling unit shall project over any property line, except the eaves of the roof, hose bibbs, windows sills and similar minor appurtenances.
Access and Maintenance Easements. Easements shall be placed on the lot abutting any Zero-Lot-Line yard to permit access for maintenance, construction, drainage and other purposes for the benefit of the Zero-Lot-Line lot. The easements shall extend at least six feet perpendicular to the Zero-Lot-Line dwelling unit, and shall also extend at least ten feet beyond the dwelling unit along the lot line to assure access.
(Ord. of 9-16-1991, Doc. #25094; Ord. No. 2018-44, § 4, 9-4-2018, Doc. #1809041202)
These Zero-Lot-Line development standards are intended to allow a number of different building site layout alternatives. Among these are:
Zero-Lot-Line. The dwelling unit has a zero setback from the side and/or rear lot line.
Interlocking Lot Design. The side and rear walls of the garage both have zero yard setbacks. No other exterior walls of the dwelling unit have a zero setback. The building site layout must:
(a)
Minimize direct views between rear-facing windows of back-to-back dwelling units.
(b)
Concentrate the limited rear yard space into a usable configuration and maximize the use of the simple side yard.
Z-lots and Angled Z-lots. The side lot lines are modified to create a Z shape which allows each unit to have side yards or alternating sides while maintaining the required Z-Lot minimum zipper building maintenance separation.
(Ord. of 9-16-1991, Doc. #25094)
Zero-Lot-Line Development may be approved in connection with Preliminary Subdivision or Minor Plat approval for one or two family dwellings wherever such dwellings are permitted under this Chapter. An applicant wishing to undertake Zero-Lot-Line Development shall specifically request such approval in connection with application for Preliminary Subdivision or Minor Plat approval.
The City Council may also require Zero-Lot-Line Development as a condition of Preliminary Subdivision or Minor Plat approval where, in the review of the Preliminary Subdivision, they find that Zero-Lot-Line Development is essential for the provision of open space, for protection of natural features or other amenities, for efficient utilization of land or facilities, or for the implementation of the policies of the City's adopted Growth Management Plan.
Effect of Approval. Where Zero-Lot-Line Development has been approved for a Preliminary Subdivision under this Part, the Final Plat shall substantially conform to the Zero-Lot-Line approval.
Modification of Standards. When, in the judgment of the Municipal Planning Board, reasonable development of a building site justifies such action, the front and rear yards may be reduced up to a maximum of 40 percent. No other variances shall be considered by the Board of Zoning Adjustment.
(Ord. of 9-16-1991, Doc. #25094; Ord. No. 2010-31, § 1, 8-30-2010, Doc. #1008301109)
Development Site Standards.
Min. Development Site Size: 0 ft.
Min. Perimeter Setback: 10 ft.
Maximum ISR: 0.55.
Min. Lot Depth: 100 ft.
Principal Building Setbacks. Except as otherwise specifically permitted by this Chapter the following standards shall apply.
(Ord. of 9-16-1991, Doc. #25094)
The corners of each mobile home space shall be clearly marked on the ground by permanent flush stakes or other permanent markers.
(Ord. of 9-16-1991, Doc. #25094)
A mobile home stand shall be provided on every mobile space to accommodate each mobile home and its attached accessory structures such as expandable rooms, enclosed patios, garages or other structural additions. The stand shall be improved to provide an adequate foundation for the placement and tie down of the mobile home, thereby securing the superstructure against uplift, sliding, rotation and overturning.
(Ord. of 9-16-1991, Doc. #25094)
Each mobile home space shall be provided with a hard-surfaced patio, except where an equivalent screened room or other outdoor space is provided as part of the mobile home itself. The patio shall be located conveniently to the entrance of the mobile home and at an elevation at least as high as that of the mobile home stand.
(Ord. of 9-16-1991, Doc. #25094)
Each mobile home space shall be provided with the electrical, plumbing and other utility installations necessary to provide services for lighting, cooling, heating and sanitary facilities for a mobile home, and shall conform to the City of Orlando Codes relative to each such installation.
(Ord. of 9-16-1991, Doc. #25094)
A minimum of 90 cubic feet for general storage space shall be provided on each mobile home space, or in compounds located within a reasonable distance, in order to provide facilities for the active storage of outdoor equipment, furniture and tools, and for the inactive storage of such other material as is used only seasonally or infrequently by the typical tenant and cannot be conveniently stored in the typical mobile home.
Development Site Standards.
Min. Development Site Area: 2 acres.
Min. Open Space: 25% (exclusive of perimeter set back areas).
Min. Perimeter Setback: 25 feet.
Max. Residential Density: Varies by zoning district. See Chapter 58, Part 2, Figures 1 and 2.
Principal Building Setbacks. Except as otherwise specifically permitted by this Chapter the following standards shall apply.
Min. Front yard: 20 ft.
Min. Side Yard: 7.5 ft.
Min. Street Side Yard: 15 ft.
Min. Rear Yard: 7.5 ft.
Mean lot width: 40 ft.
Minimum area each lot: 3500 sq. ft.
Min. Lot Depth: 0 ft.
(Ord. of 9-16-1991, Doc. #25094)
- SPECIFIC RESIDENTIAL USES
Editor's note— Ord. No. 2018-44, § 4, adopted 9-4-2018, Doc. #1809041202, amended the title of Ch. 58, Pt. 3A to read as herein set out. Formerly said Part was entitled accessory apartments. Said Ordinance also amended Part 3A in its entirety.
3B. Townhome Development
Editor's note— Ord. No. 2018-44, § 4, adopted September 4, 2018, Doc. #1809041202, amended the title of Ch. 58, Pt. 3B to read as herein set out. Formerly said Part was entitled Attached Dwelling Development. Said Ordinance also amended Part 3B in its entirety.
Editor's note— Ord. No. 2017-17, § 6, 4-10-2017, Doc. #1704101203, amended the title of Ch. 58, Pt. 3C to read as herein set out. Formerly said Part was entitled Tandem Dwelling Development. Said Ordinance also amended Part 3C in its entirety.
Editor's note— Ord. No. 2016-68, § 3, adopted November 14, 2016, Doc. #1611141201, repealed Ch. 58, Part 3D, §§ 58.520—58.523, in its entirety. Formerly said part pertained to Average-Lot Development and derived from Ord. of 9-16-1991, Doc. #25094 and subsequent amendatory ordinances. See the Code Comparative Table for a complete derivation.
Editor's note— Ord. No. 2016-68, § 4, adopted November 14, 2016, Doc. #1611141201, repealed Ch. 58, Part 3E, §§ 58.530—58.533, in its entirety. Formerly said part pertained to Cluster Development and derived from Ord. of 9-16-1991, Doc. #25094 and subsequent amendatory ordinances. See the Code Comparative Table for a complete derivation.
Editor's note— Ord. No. 2018-45, § 3, adopted August 20, 2018, Doc. #1808201202, repealed the former Ch. 58, Pt. 3F, §§ 58.540—58.544, and enacted a new Ch. 58, Part 3F as set out herein. The former Ch. 58, Pt. 3F pertained to group housing and derived from Ord. of 9-16-1991, Doc. #25094; Ord. 5-20-1996, Doc. #29361.
Editor's note— Ord. No. 2018-44, § 4, adopted 9-4-2018, Doc. #1809041202, amended the title of Ch. 58, Pt. 3H to read as herein set out. Formerly said Part was entitled multi-family (3—5 dwelling units in R-2B zoning district). Said Ordinance also amended Part 3H in its entirety.
Editor's note— Ord. No. 2018-44, § 4, adopted September 4, 2018, Doc. #1809041202, amended the title of Ch. 58, Pt. 3I to read as herein set out. Formerly said Part was entitled Multi-Family Developments Above and Below 75 Feet in Height. Said Ordinance also amended Part 3I in its entirety.
Editor's note— Ord. No. 2018-45, § 3, adopted August 20, 2018, Doc. #1808201202, repealed Ch. 58, Part 3J, §§ 58.580—58.583, which pertained to nursing homes and derived from Ord. of 9-16-1991, Doc. #25094; Ord. 5-20-1996, Doc. #29361.
Editor's note— Ord. No. 2018-45, § 3, adopted August 20, 2018, Doc. #1808201202, repealed Ch. 58, Part 3K, §§ 58.590—58.597 which pertained to residential social service facilities and derived from Ord. of 9-16-1991, Doc. #25094; Ord. of 5-11-1998, Doc. #31215; Ord. of 4-5-1999, § 4, Doc. #32007; Ord. of 1-24-2005, § 8, Doc. #050124909.
Editor's note— Ord. No. 2016-68,§ 5, adopted November 14, 2016, Doc. #1611141201, repealed Ch. 58, Part 3M, §§ 58.610—58.613, in its entirety. Formerly said part pertained to Designed Community and derived from Ord. of 9-16-1991, Doc. #25094 and subsequent amendatory ordinances. See the Code Comparative Table for a complete derivation.
The standards and requirements of this Part are intended to add inexpensive dwelling units to meet the needs of older households, single member households, and single parent households; to make housing available to those persons who might otherwise have difficulty finding homes within the City; and to protect the stability, property values and one-family residential character of neighborhoods by ensuring that accessory apartments are developed only under conditions appropriate to further the purposes of this Chapter. These standards apply to all accessory dwelling units (ADU's) throughout the City
(Ord. of 9-16-1991, Doc. #25094; Ord. No. 2018-44, § 4, 9-4-2018, Doc. #1809041202)
Accessory dwelling units shall conform to all of the general requirements for accessory uses set forth in Part 5 of Chapter 58, the zoning district and use regulations set forth in Figures 1-2, and the following requirements:
A.
Location and Number.
1.
In the O-1 and O-2 zoning districts, only one accessory dwelling unit is permitted on any single family residential building site or an on-site office site, providing it meets the minimum development standards for area shown in the table below.
2.
In the R-2A zoning district, a maximum of two units (a duplex or tandem development) are allowed per Building Site. Accessory Dwelling Units are prohibited on any building site in the R-2A zoning district where there is an existing duplex or tandem dwelling, or in connection with any new duplex or tandem dwelling development.
3.
In the R-2B zoning district, multifamily development (to include ADUs) is permitted if in compliance with Part 3H of Chapter 58.
B.
Conversion to tandem dwelling. On any building site in an R-2A or R-2B district, any new accessory dwelling over 500 sq. ft. and built in connection with a one family dwelling must conform to the standards for tandem dwellings in Part 3C of this Chapter. An existing or new accessory dwelling unit may not be split into a separate lot for purposes of creating a tandem dwelling unless the tandem dwelling standards are met.
C.
Development Standards for ADUs. The following are the development standards for all ADUs.
* All accessory dwelling units must be smaller than the principal structure. Also, see "Lots of Record" subpart below for ADUs on non-conforming lots of record.
† For ADUs in Historic Preservation districts, refer to Sec. 62.706.
** Must comply with Tandem Code - Part 3C of Chapter 58
1.
Maximum Floor Area. Unless limited elsewhere in this Chapter, the maximum floor area ratio for the single family unit plus the ADU cannot exceed 0.50 Floor Area Ratio or the maximum FAR of the principal structure of the zoning district whichever is less. No ADU may be larger than 1,000 sq. ft.
2.
Setbacks. Subject to Modification of Standards (see Sec. 65.302(9)), the setbacks for accessory dwelling units are as follows:
a.
Connected to the principal structure: the same as for the principal structure.
b.
Detached in an accessory building: the same as for all accessory structures. (ADUs that are greater than 500 sq. ft. in all R-2, R-3, MXD, and in Office districts must comply with the setbacks of tandem development - See Part 3C of Chapter 58).
D.
Appearance. ADUs must be designed to appear to be part of a one family dwelling unit. An ADU structure must have the same exterior finish as the principal structure on the same building site and must emulate the architectural style and details of the principal structure into its design. Examples of similar architectural details include, but are not limited to, windows, doors, roof style, cornice detailing, vents, and dormers. An Appearance Review is required prior to approval of building permits. As an alternative to emulating the architecture and finish materials of the principal structure, such design may be approved by the Appearance Review Official (in consultation with the Planning Official) when evidence is provided that demonstrates the architecture of the ADU complements the primary structure and will not be out of character with the surrounding neighborhood.
E.
Building Code. Must comply with the Florida Building Code as well as Section 30A.24 of the City Code.
F.
Parking.
1.
Principal Structure - Each building site must have one parking space and driveway that complied with the Land Development Code at the time the principal structure was constructed.
2.
Larger ADUs - If the ADU is greater than 500 sq. ft. in size, an additional parking space located behind the front yard setback and at least 20 feet from the street side lot line is required. The second required parking space must be in independently accessible to the street and not enclosed within the principal structure.
3.
Smaller ADU Parking Exception - ADUs that are 500 sq. ft. or smaller that have code compliant parking for the principal structure at the time the principal structure was constructed are not required to have an additional parking space for the ADU.
G.
Impact fees. See Chapter 56.
H.
Non-Conforming Lots of Record. Lots of Record that are non-conforming in minimum size may apply for a variance for the addition of an ADU. If approved, the maximum size of the ADU cannot exceed 500 square feet, and the FAR for the principal structure and ADU cannot exceed 0.50.
I.
Compliance with the GMP. Conformance with this Code will be considered compliance with the City of Orlando's Growth Management Plan.
(Ord. of 9-16-1991, Doc. #25094; Ord. 5-20-1996, Doc. #29361; Ord. of 8-6-2007, § 6, Doc. #0708061002; Ord. No. 2018-44, § 4, 9-4-2018, Doc. #1809041202; Ord. No. 2022-29, § 1, 5-16-2022, Doc. #2205161203)
Editor's note— Ord. No. 2018-44, § 4, adopted September 4, 2018, Doc. #1809041202, repealed § 58.502, which pertained to elderly cottage housing opportunity (ECHO housing) and derived from Ord. No. 2010-47, § 2, 10-18-2010, Doc. #1010181112.
A.
Intent. The Townhome Development standards are intended to allow for flexible and creative site planning to facilitate townhome development as a fee simple alternative to conventional single family development. Design flexibility for creative site planning is intended to encourage townhome development that has vehicular access and parking in the rear, setbacks that are compatible with adjacent development, and elevated first floors.
B.
Applicability. Except for townhomes subject to the specific design standards of a planned development zoning district, the standards and requirements of this Part apply to the construction of new townhomes, and substantial improvements or substantial enlargements to existing townhomes.
C.
Conflicts. If any provisions of these regulations are determined to be in conflict with any other City regulation, these regulations prevail except where otherwise specified or regulated by a historic district or other overlay zoning district.
(Ord. of 9-16-1991, Doc. #25094; Ord. of 6-4-2001, § 4, Doc. #33841; Ord. No. 2018-44, § 4, 9-4-2018, Doc. #1809041202)
In addition to the Zoning District and Use Regulations of Figures 1—2 and the standards ordinarily applying to the review of Master Plan and Subdivision Plat applications, the following standards shall apply:
A.
Development Site Standards:
1.
The development shall meet the requirements of Chapter 65, Part 5D (Improvements Retained in Private Ownership), and Part 5E (Maintenance of Common Improvements and Open Space).
2.
The development shall be designed in a manner to adequately protect adjacent land uses, which shall include for this purpose any landscaped bufferyard which may be required by Chapter 60, Part 2 along the boundaries of the development as necessary to ensure compatibility of land uses, which shall be maintained as common or dedicated open space.
3.
Density for townhome units is calculated as follows:
a)
Maximum density is established by dividing the total number of dwelling units by the net area of the development site.
b)
Minimum density is established by dividing 43,560 square feet by the average size of the individual building sites (townhome lots) in square feet.
4.
Impervious Surface Ratio (ISR): Maximum amount must be established consistent with the applicable zoning district. If the development site is below the maximum ISR, any remaining available impervious surface must be allocated to individual lots as part of the master plan or conditional use permit. ISR in the front and street side setbacks cannot exceed 40%, consistent with Section 61.302(f)(2).
5.
Not more than 8 dwelling units may be provided within a single building.
6.
If the development site includes platting new streets, or includes more than 20 dwellings, in addition to the standard parking requirement in Chapter 61 Figure 26, guest parking is required at a ratio of 1 space per 5 dwellings. On-street parking on streets being constructed within the development site may count toward this requirement.
7.
Development sites with 31 to 99 units must provide a minimum of 2 access points to the surrounding street network. One of these access points may be operated as an "Emergency Only" access and may use a stabilized, pervious surface approved by the City Engineer or designee.
8.
Development sites with 100 or more units must provide a minimum of 2 access points with impervious surfaces suitable for all users.
9.
Front-loaded townhomes are prohibited. Driveway and parking access must be from the rear of the unit.
10.
Driveways must meet the following minimum requirements:
a)
The maximum width is 24 feet at the property line.
b)
Up to four units served: The minimum width is 14 feet at the property line, narrowing to 12 feet at a point 15 feet from the property line.
c)
Five or more units served:
i.
One-way (access to two streets): The minimum width is 14 feet at the property line, narrowing to 12 feet at a point 15 feet from the property line.
ii.
Two-way: The minimum width is 20 feet wide at the property line, narrowing to 16 feet at a point 15 feet from the property line.
11.
Maneuvering areas for perpendicular parking spaces must meet the following requirements:
a)
A minimum of 22 feet clear pavement is required behind each parking space. This 22 feet width may be incorporated into the width of a shared driveway or an alley.
b)
The 22-foot width must be measured from the face of the garage door, the back of a carport, or the back of an uncovered parking space, as applicable.
12.
A minimum 2-foot wide clear area must be maintained adjacent to any backing and maneuvering area that is less than 24 feet wide, and along both sides of the driveways throughout the development site.
a)
This area may be decorative pavement, or landscaped with grass or other groundcover.
b)
This area may not contain a fence, wall or landscaping that includes species with mature heights greater than 18 inches.
c)
This area may only be included in the minimum width of any required bufferyard if it is not paved, and if the required landscaping and/or fences can be accommodated outside the clear area.
B.
Building Site Standards:
1.
Minimum lot width: 20 feet
2.
Minimum area each lot: 1,000 square feet
3.
Setbacks:
a)
For street facing units, each unit must meet the setbacks for the applicable zoning district, except that as part of master plan, a modification to the maximum setbacks in AC and MU districts may be allowed in order to provide a landscaped front yard and/or street side yard.
b)
For units facing a courtyard, the perimeter of the development site must meet the applicable setbacks for the zoning district. Individual units need to meet the front and rear setbacks established by the dimensions for courtyards and driveways.
4.
Height limit: Per the applicable zoning district. Roof decks, whether covered or open air, are included within the height of the building at a minimum height of 8 feet.
5.
Building Separation: A minimum 10-foot separation is required between all buildings on the development site.
6.
Frontage requirements. Each unit must be developed consistent with one of the two following options:
a)
Frontage on a public street, or a private street that meets public street design standards.
b)
Frontage onto a courtyard. The courtyard must include the following:
i.
Minimum width of 15 feet if units face one side of the courtyard. If a bufferyard is required, the courtyard must include sufficient landscaping to meet the bufferyard standard. The 15 feet width courtyard can accommodate up to a 5 foot wide buffer. If a wider bufferyard is required, the width of the courtyard must be increased to meet the bufferyard standard.
ii.
Minimum width of 25 feet if units face both sides of the courtyard.
iii.
Minimum 5 foot sidewalk required for the length of the courtyard. The sidewalk must connect the primary pedestrian entrance of each unit to a sidewalk on a public or private street.
iv.
A maximum of 4 units are allowed on a single-sided courtyard that dead-ends into an adjacent development site. See Figure 7E.
v.
Fencing is not required. If included, fences, walls or other privacy barriers must not block access between individual lots on the side of the building where the primary pedestrian entrances are located.
Figure 7E: Townhomes facing a single-sided courtyard
(Ord. of 9-16-1991, Doc. #25094; Ord. of 6-4-2001, § 5, Doc. #33841; Ord. No. 2018-44, § 4, 9-4-2018, Doc. #1809041202)
[A.]
Review process.
1.
Townhomes must follow the procedures for a master plan review as specified under Section 65.331.
2.
If townhomes are a conditional use in the zoning district, in lieu of a master plan, a conditional use permit (CUP) is required per Chapter 65, Part 2D. The zoning districts that require a CUP have a minimum density that is higher than the maximum density for townhome development (at a minimum lot size of 1000 sq. ft. per unit). In order to develop townhomes in these districts, they must be combined with other multifamily uses or non-residential uses on the development site to meet the minimum density or intensity, as described in Section 58.207.
3.
For all townhome development, a subdivision plat establishing fee simple lots is required per Chapter 65, Part 3. The plat must also identify easements, tracts and/or alleys as necessary to provide locations for shared utilities, driveways, and open space. Maintenance agreements for the common areas must also be executed at the time of platting.
[B.]
Developments with Modifications. An applicant proposing a modification from the standards in Part 3B of this Chapter, or the standards described in Section 65.334-1(a), may apply for a Master Plan with Modifications. The following factors will be considered in review of the request:
1.
Neighborhood compatibility.
2.
Site constraints.
3.
Ability to preserve on-site trees or street trees.
4.
Creative architectural design not anticipated by this code.
5.
Ability to provide safe and attractive pedestrian access.
6.
Ability to minimize views of vehicular use areas from the public realm.
7.
Ability to minimize curb cuts and maximize opportunities for street trees and on-street parking.
(Ord. of 9-16-1991, Doc. #25094; Ord. No. 2010-31, § 1, 8-30-2010, Doc. #1008301109; Ord. No. 2018-44, § 4, 9-4-2018, Doc. #1809041202)
To ensure that each townhome development is harmonious and architecturally compatible with existing development in the surrounding neighborhood, an appearance review in accordance with Part 3, Chapter 62 of this Code and the following additional standards are required prior to the issuance of a building permit.
A.
Articulation Each façade that faces a street must include projections or recesses such as a front porch, front stoop, bay window, building recesses, or other feature to diminish the boxy townhome shape.
B.
Orientation All dwellings must include a primary pedestrian entrance that faces a street or a courtyard.
C.
Pedestrian access A pedestrian path from the public sidewalk to the primary pedestrian entrance is required.
D.
Ground floor elevation For street facing dwellings, building foundations must be elevated a minimum of 18" above the finished grade as measured at the front façade of the dwelling.
E.
Porches If constructed, a porch that meets the standards of Section 62.600(g) may encroach up to 6 feet into the required front and street side yard setbacks.
F.
Minimum Landscaping Area Townhomes are required to meet the multifamily standards of the landscaping code (Chapter 60) for the development site as a whole. In addition, stormwater swales or ponds are not allowed in the front or street side setbacks unless low impact design standards for rain gardens are met.
G.
Transparency A minimum 15% transparent materials is required on all façades facing a public street, private street, or courtyard, on each story below the roof line. A minimum 10% transparent materials is required on all interior side façades on each story below the roof line.
H.
Screening of utilities Utilities such as backflow preventers, metering boxes, gang mailboxes, and mechanical equipment must be placed to the side or rear of the site, and must be screened with landscaping, a decorative enclosure, or a wall.
I.
Fire walls Protrusions of fire walls must be minimized and incorporated into the architecture of the building.
J.
Compatibility. The appearance review official will consider the following factors when evaluating the compatibility of townhome development with the surrounding neighborhood:
1.
Logic of overall design.
2.
Site plan.
3.
Landscaping and pervious surface.
4.
Driveway design, circulation and parking.
5.
Environmental features and tree preservation.
6.
Alignment of curb cut(s) to maximize ability to plant street trees and preserve on-street parking.
7.
Where applicable, compliance with the traditional city standards and requirements for residential development in Section 62.600.
8.
Compatibility with adjacent land uses.
9.
Features of existing development and neighborhood form.
The City may also make recommendations pertaining to alternate setbacks and building height. Although these items are regulated by code, adjustments may be appropriate to improve neighborhood compatibility, address site constraints, or improve the design and character of the building.
K.
Architectural Style. Each building must have consistent architectural elements that create a recognizable architectural style, including but not limited to classical revival, colonial revival, craftsman, Florida vernacular, Mediterranean revival, mid-century modern, minimal traditional, Florida ranch, or other style identified in an industry-accepted architectural guidebook. All architectural elements, details, features, and finishes on the exterior of the building must be both consistent and compatible with the architectural style employed. Architectural elements and variations cannot be restricted to a single façade and must be wrapped along the entire length of all street-facing facades. The appearance review official will consider the following elements when evaluating conformance with this requirement:
1.
Roof type, pitch, form, material and overhang
2.
Exterior elevation, materials and finishes
3.
Window proportions, groupings, trim, muntins and details
4.
Column size, taper, base and moulding
5.
Balcony width and depth
6.
Porch width, depth, elevation and railings
7.
Chimney details
8.
Dormers/parapets
9.
Brackets, shutters, railings, rafter tails and decorative details
10.
Transparency
11.
Building projections and recesses
12.
Entryway and front door design
13.
Garage placement and door design
14.
Exterior lighting
15.
Incorporation of architectural features into any fire separation wall
16.
Other generally accepted architectural elements, as determined appropriate by the appearance review official
Together, these elements should create a cohesive structure that avoids boxy, flat facades; highlights architectural features using authentic and durable materials; provides distinct identity to each unit in a manner appropriate to the style employed, and minimizes the visual impact of garages from the public right-of-way.
(Ord. of 9-16-1991, Doc. #25094; Ord. of 6-4-2001, § 6, Doc. #33841; Ord. No. 2018-44, § 4, 9-4-2018, Doc. #1809041202)
(a)
Intent. The standards and requirements of this part are intended to provide flexibility for creative site planning, to expand the choice and type of dwelling units available to the public, to maintain compatibility with, and the integrity of, the neighborhood through architecture and building orientation appropriate to such neighborhoods, to create alternative opportunities for fee simple ownership on real property, and to encourage development of duplex and tandem units that are compatible with adjacent single family homes.
(b)
Applicability. Except for duplex or tandem dwellings subject to the specific design standards of a planned development zoning district, the standards and requirements of this Part apply City-wide to the construction of new duplex and tandem dwellings, and substantial improvements or substantial enlargements to existing duplex and tandem dwellings.
(c)
Conflicts. If any provisions of these regulations are determined to be in conflict with any other City regulation, these regulations shall prevail except where otherwise specified or regulated by a historic district or other overlay zoning district.
(Ord. of 9-16-1991, Doc. #25094; Ord. of 11-28-1994, Doc. #28064; Ord. of 6-4-2001, § 8, Doc. #33841; Ord. No. 2017-17, § 6, 4-10-2017, Doc. #1704101203)
In addition to the Zoning District and the Use Regulations of Figures 1 and 2 and the standards applying to the review of Subdivision Plats, the following standards apply except where otherwise specified or regulated by a historic district or other overlay zoning district:
(a)
Corner building sites in the R-2A District. Duplex dwellings are prohibited on corner building sites in the R-2A district. Tandem dwellings are allowed on corner building sites in the R-2A district.
(b)
Principal pedestrian entrance on corner building sites. Corner building sites shall be developed such that the front dwelling unit has a principal pedestrian entrance oriented towards the front lot line and the rear dwelling unit has a principal pedestrian entrance oriented to the street side lot line.
(c)
Environmental Features. The design of the development shall protect environmental features of significant ecological or amenity value as recognized by this Chapter or the adopted Growth Management Plan. The Design shall to the extent possible retain existing mature canopy and understory trees.
(d)
Adjacent Land Uses. The development shall be designed in a manner compatible with adjacent land uses. Compatibility of design within a neighborhood shall be considered during the review of the development.
(e)
Accessory Building & Structures. Accessory buildings shall be located subject to the requirements of Chapter 58, Part 5A. Walls, fences, and swimming pools may be located on each lot provided they conform to the appropriate regulations contained within this Chapter.
(f)
Duplex Dwellings—Rear Setback. The minimum rear yard setback for a duplex may be reduced by 5 feet if the following conditions are met: (1) the duplex is a front-to-back style, (2) the duplex building site is no more than 55 feet wide, and (3) the building site has a maximum of one detached accessory building that does not exceed 100 sq. ft.
(g)
Street Trees. At least one canopy street tree per 50 feet of street frontage is required. Location and species are required to meet Part 2D, Chapter 62, of this Code. If a canopy tree cannot be installed due to power lines or other constraints, the following requirements apply:
1.
The building site must include understory street trees per location and species as required by Part 2D, Chapter 62, of this Code and
2.
The front yard of the site must include one onsite canopy tree for each canopy street tree that is not installed. This is in addition to the required onsite landscaping per section 60.223 of this Code.
(h)
Court homes are allowed on adjacent building sites.
(Ord. of 9-16-1991, Doc. #25094; Ord. of 11-28-1994, Doc. #28064; Ord. of 6-4-2001, § 9, Doc. #33841; Ord. No. 2017-17, § 6, 4-10-2017, Doc. #1704101203)
Tandem Single Family Development shall comply with the following lot development standards:
(a)
Development Site Standards. Except where otherwise specified or regulated by a historic district or other overlay zoning district, tandem dwellings are permitted on building sites that are otherwise zoned for and meet the building site standards for duplex dwellings. On corner lots outside the R-2A zoning district, tandem dwellings are encouraged in lieu of duplex dwellings.
(b)
Minimum Mean Lot Width: The building site must meet the lot width of applicable zoning district, however each tandem lot may have a lesser width.
(c)
Maximum Residential Density: As permitted by the Code for the applicable zoning district.
(d)
Maximum building size.
1.
The maximum 0.5 floor area ratio must be met on each tandem lot.
2.
On interior lots, the gross square footage of the rear unit cannot exceed the gross square footage of the front unit.
(e)
Maximum Impervious Surface Ratio (ISR): Varies by zoning district. Each created lot shall meet the ISR requirement of the applicable zoning district.
(f)
Minimum Principal Building Separation. There shall be a minimum separation of 10 ft. between buildings/structures, with no less than 5 ft. on each side of the property line.
(g)
Minimum Required Setbacks for Tandem Dwellings.
A.
Lots Resulting from Corner Lot Subdivision (see FIGURE 8A).
1.
Corner unit:
Front yard setback: As per the zoning district
Side yard setback: 5 ft.
Street side yard setback: 15 ft. for living quarters; 20 ft. for vehicular space(s)
Rear yard setback: 5 ft.
2.
Interior unit:
Front yard setback: 15 ft. for living quarters; 20 ft. for vehicular space(s)
Side yard setback: 5 ft. (facing tandem unit) and 15 ft. (facing adjacent lot)
Rear yard setback: 5 ft.
FIGURE 8A. CORNER LOT SUBDIVISION
B.
Lots Resulting from Through Lot Subdivision (see FIGURES 8B & 8C).
1.
Corner unit:
Front yard setback: As per the zoning district
Side yard setback: 5 ft.
Street side yard setback: 15 ft.
Rear yard setback: 5 ft.
FIGURE 8B: THROUGH LOT SUBDIVISION (CORNER LOT)
2.
Interior unit:
Front yard setback: As per the zoning district
Side yard setback: 5 ft.
Rear yard setback: 5 ft.
FIGURE 8C: THROUGH LOT SUBDIVISION (INTERIOR LOT)

Orientation. The front and front door of any dwelling unit in a Tandem Single Family Development shall be oriented to such dwelling unit's required front yard.
C.
Lots Resulting from Interior Lot Subdivision (see FIGURE 8D)
1.
Front unit:
Front yard setback: As per the zoning district
Side yard setback: As per the zoning district
Rear yard setback: 5 ft.
2.
Rear unit:
Front yard setback: 5 ft.
Side yard setback: As per the zoning district
Rear yard setback: 20 ft.
FIGURE 8D. INTERIOR LOT SUBDIVISION
(Ord. No. 2017-17, § 6, 4-10-2017, Doc. #1704101203)
To ensure that each duplex and tandem dwelling is harmonious and architecturally compatible with existing residential structures in the surrounding neighborhood, an appearance review in accordance with Part 3, Chapter 62 of this Code and the following additional standards are required prior to the issuance of a building permit. These standards apply to the front and side elevations of each building.
(a)
Variety in Design. Duplexes or tandem dwellings with identical front elevations must not be located on adjacent building sites. Simple reverse configurations of the same elevation on adjacent building sites are not sufficient. In order to qualify as a different façade elevation, dwellings must have different roofline configurations. In addition, at least four of the following architectural elements must be different from the adjacent building site(s):
1.
Architectural banding, trim, or cornice detail
2.
Window trim, the number of mullions or muntins, or shutters
3.
Window size and placement
4.
A covered entryway or front porch design
5.
Building projections and recesses
6.
Decorative roofline elements such as brackets or chimneys
7.
Façade articulation such as bay windows or dormers
8.
Exterior color and material
9.
One and two-story units
10.
Other generally accepted architectural elements, as determined appropriate by the Appearance Review Officer
(b)
Side-by-side Duplexes. Such duplexes must not have front elevations that are mirror images. The left side and right side of the building must be designed to include variety in at least three of the following elements:
1.
Roof style
2.
Architectural banding, trim, or cornice detail
3.
Window trim, the number of mullions or muntins, or shutters
4.
Window size and placement
5.
A covered entryway or front porch design
6.
Balconies or juliette balconies
7.
Building projections and recesses
8.
Decorative roofline elements such as brackets or chimneys
9.
Façade articulation such as bay windows or dormers
10.
One and two- story units
11.
Other generally accepted architectural elements, as determined appropriate by the Appearance Review Officer
(c)
Compatibility. The appearance review officer will consider the following factors when evaluating the compatibility of duplex or tandem dwelling development with the surrounding neighborhood:
1.
Logic of overall design
2.
Site plan
3.
Landscaping and pervious surface
4.
Driveway design, circulation and parking
5.
Environmental features and tree preservation
6.
Alignment of curb cut(s) to maximize ability to plant street trees and preserve on-street parking
7.
Compliance with the traditional city standards and requirements for residential development in section 62.600, of this Code.
8.
Compatibility with adjacent land uses
9.
Features of existing development and neighborhood form Staff may also make recommendations pertaining to setbacks and building height. Although these items are regulated by code, adjustments may be appropriate to improve neighborhood compatibility, address site constraints, or improve the design and character of the building.
(d)
Architectural Style. Each building must have consistent architectural elements that create a recognizable architectural style, including but not limited to classical revival, colonial revival, craftsman, Florida vernacular, Mediterranean revival, mid-century modern, minimal traditional, Florida ranch, or other style identified in an industry-accepted architectural guidebook. All architectural elements, details, features, and finishes on the exterior of the building must be both consistent and compatible with the architectural style employed. Architectural elements and variations shall not be restricted to a single façade. The appearance review officer will consider the following elements when evaluating conformance with this requirement:
1.
Roof type, pitch, form, material and overhang
2.
Exterior elevation, materials and finishes
3.
Window proportions, groupings, trim, muntins and details
4.
Column size, taper, base and moulding
5.
Balcony width and depth
6.
Porch width, depth, elevation and railings
7.
Chimney details
8.
Dormers/parapets
9.
Brackets, shutters, railings, rafter tails and decorative details
10.
Transparency
11.
Building projections and recesses
12.
Entryway and front door design
13.
Garage placement and door design
14.
Exterior lighting
15.
Incorporation of architectural features into any fire separation wall
16.
Other generally accepted architectural elements, as determined appropriate by the Appearance Review Officer
Together, these elements should create a cohesive structure that avoids boxy, flat facades; highlights architectural features using authentic and durable materials; and minimizes the visual impact of garages from the public right-of-way.
(e)
Side Elevations. Interior side elevations that do not face a corner must include at least one of the following elements to prevent blank walls:
1.
A minimum of 10% transparent or translucent materials on each story below the roof line; or
2.
Vertical and/or horizontal articulation that includes stepping the wall plane in or out by at least 2 feet according to the following requirements.
i.
The articulation must be provided on one-story walls and on both floors for two-story walls.
ii.
The inset or projection must extend a distance of at least 6 feet along the side property line and may continue another 36 feet of wall length before repeating the articulation.
iii.
Projections designed to accomplish the articulation requirement must meet the required side setback.
(f)
Design Variances. An applicant proposing to construct a duplex or tandem that does not comply with the standards in this section may apply for a design variance from the design review and development standards this Code. The following factors will be considered in review of the request:
1.
Neighborhood compatibility
2.
Site constraints
3.
Ability to preserve on-site trees or street trees
4.
Creative architectural design not anticipated by this code
(Ord. No. 2017-17, § 6, 4-10-2017, Doc. #1704101203)
(a)
Intent. The duplex and tandem dwelling lot split standards are intended to allow each dwelling unit within an existing duplex dwelling building site (including those that may currently be in condominium ownership and existing nonconforming side-by-side duplexes and court homes) to be converted to fee-simple ownership, similar to attached dwelling developments (see Part 3B of this Chapter), where such use is otherwise permitted by this Code. These standards are also intended to ensure proper and functional design. In order to ensure maintenance of common areas within duplex dwelling developments, the City encourages fee simple owners to record clear covenants, conditions, and restrictions for maintenance of common areas and common facilities.
(b)
Process. Duplex and tandem dwelling lot splits may be approved in conjunction with a subdivision plat or lot split approval wherever such dwellings are permitted by this Code. An applicant wishing to undertake a duplex or tandem dwelling lot split shall specifically request such approval in conjunction with an application for plat or lot split approval. All applications shall include a detailed site plan, with building elevations, for appearance and neighborhood compatibility review.
(c)
Effect of Approval. Where a subdivision plat has been approved for a duplex or tandem dwelling lot split development, the final plat must substantially conform to the duplex or tandem dwelling lot split approval. No building permit will be issued for any duplex or tandem dwelling lot split development except in accordance with the approved subdivision plat or lot split.
(d)
Ownership and Maintenance of Common Areas and Structures. Common areas and structures must meet the requirements of Part 5D, Chapter 65 of this Code (Improvements Retained in Private Ownership) and Part 5E of this Code, (Maintenance of Common Improvements and Open Space).
(e)
Building Site Standards. In order to establish two separate lots, the duplex or tandem dwelling building site must conform to the following minimum standards:
1.
The duplex or tandem dwelling building site must conform with section 58.110, Figure 1 for two family conventional development in the zoning district in which it is located, or
2.
Must be a legal non-conforming dwelling or lot of record.
(f)
Lot Standards. Both lots within a building site must comply with the following minimum standards:
1.
Minimum lot area for each dwelling is 2,000 sq. ft.
2.
Front-to back lots are not required to have street frontage for the rear lot, but must include a vehicular cross-access easement to the right-of-way.
3.
No existing accessory dwelling unit in an R-2A or R-2B district may be converted to a tandem dwelling unless it conforms to the development standards for tandem dwellings.
(g)
Duplex Dwelling Development Standards. Duplex dwelling lot split developments must conform to all of the following additional standards:
1.
The original undivided lot is considered one unified parcel or building site for zoning purposes.
2.
Utility lines must either be separate and independent, or for any shared utility, must have a joint maintenance agreement.
(Ord. No. 2017-17, § 6, 4-10-2017, Doc. #1704101203)
All congregate living facilities allowed under this Chapter must conform to the Zoning District and Use Regulations of Figures 1—2 and shall be classified into four categories as follows.
1 An assisted living facility with 14 or fewer residents that is licensed by the State of Florida to provide extended congregate care services, limited nursing services, or limited mental health services shall still be considered a residential care facility for the purposes of this Section
2 When a facility that otherwise would be considered a congregate living facility meets the criteria contained in the "single family" row, the facility shall not be considered a congregate living facility and shall be considered a permitted use in all zoning districts and housing types where residential dwelling units are allowed.
(Ord. No. 2018-45, § 3, 8-20-2018, Doc. #1808201202)
A.
Neighborhood Compatibility. In R-1AA, R-1A, R-1, R-1N, R-2A, and R-2B zoning districts, where permitted or conditionally permitted by Chapter 58, Figure 2, the external appearance of congregate living facility structures and building sites must maintain the general residential character of the district. Exterior building materials, bulk, landscaping, fences and walls, and general design must be similar to and compatible with those of surrounding dwellings.
B.
Intensity of Development. In order to ensure that the intensity of congregate living facilities remains in keeping with other development allowed under this Chapter, all congregate living facilities must conform to the Zoning District and Use Regulations for the district in which they are located, and must, in particular, conform to the lot area, mean lot width, building site frontage, density and maximum dwelling units per building site requirements. Minimum density requirements shall not apply when a Type A, B, or C congregate living facility is the principal use of a building site.
1.
Maximum density Group Housing and Nursing Homes: every 2.5 residents (rated patron capacity) are considered one dwelling unit.
2.
Maximum density all other Congregate Living Facilities: the first 6 residents (rated patron capacity) are considered one dwelling unit and each additional 3 residents thereafter are deemed to equal one additional dwelling unit.
C.
Signs. In order to preserve the general appearance of the neighborhood as a primarily one and two family residential area, no signs for congregate living facilities are permitted in R-1, R-1N, R-1A, R-1AA, R-2A or R-2B zoning districts. Signs in other districts are allowed in accordance with Chapter 64.
D.
Other Uses. Other uses associated with a congregate living facility, including child or adult day care facilities for children and adults who do not live in the facility, may be permitted when otherwise allowed in the zoning district.
E.
Conformance with State Regulations. In addition to the requirements of this Chapter, all congregate living facilities must comply with the statutes and regulations of the State of Florida for the most closely analogous group care categories, whether or not such facilities are licensed and regulated by the State. Applicable state statutes and regulations are deemed a part of this Chapter.
(Ord. No. 2018-45, § 3, 8-20-2018, Doc. #1808201202)
Where a conditional use permit is required to establish a congregate living facility in a zoning district, or to waive a distance separation requirement, the Municipal Planning Board and City Council shall consider the factors and standards applicable to all conditional use permits and may prescribe appropriate conditions and safeguards as stated in Chapter 65, Part 2D. In addition to the factors and standards in Chapter 65, Part 2D, the Municipal Planning Board and City Council shall use the following review criteria to determine the appropriateness of conditional use permit applications for congregate living facilities:
A.
Concentration Discouraged. The regulations of this Part are designed, in part, to limit the concentration of congregate living facilities in one distinct geographical area and encourage the dispersal of such uses throughout all residential neighborhoods in the City. In analyzing a request for a conditional use permit, particularly a conditional use permit to waive a separation distance for a group care facility, the Municipal Planning Board and City Council must consider the number, type, intensity, and proximity of existing congregate living facilities in the surrounding neighborhood as well as existing development patterns and any mitigating factors that may lessen the impacts of such a concentration.
B.
Design of Facility. The architectural style, building materials, massing, height, location and design of parking facilities and vehicular use areas, ingress, egress, on-site circulation, landscaping, and storm water retention/detention areas shall be designed to integrate into the surrounding neighborhood, mitigate impacts of noise and traffic to levels associated with permitted uses in the zoning district, and enhance the safety of both congregate living residents and residential neighbors.
C.
Findings for Denial of the CUP request. When the Municipal Planning Board and City Council find that a proposed location for a congregate living facility would substantially alter the nature and character of an area by creating a concentration of such facilities, the conditional use permit may be denied, except when such denial would violate protections provided under the state or federal Fair Housing Acts, the Americans with Disabilities Act, the Rehabilitation Act, or other state and federal laws regarding these types of uses.
(Ord. No. 2018-45, § 3, 8-20-2018, Doc. #1808201202)
A.
Determination Required. Prior to the establishment of a group housing facility, or conversion to group housing, Type A, B or C, the owner and the operator shall be responsible for securing a Zoning Official Determination. A new determination in the name of a new owner or operator shall be required in the event of a change in ownership or leasehold interest in a group housing facility.
B.
Determination Renewal. The group housing determination must be renewed at least annually on or before October 1st of each year.
C.
Inspections Required For Determination. Application for a determination for group housing not in existence at the time of the original effective date of these group housing regulations shall be conditioned upon all inspections, reviews, plans and other documents or items required by the Zoning Official, including a floor plan indicating the placement of beds within the structure, being secured and approved before the owner, operator or user begins use of the land for group housing. The following required inspections shall be conducted prior to the issuance of a determination for group housing under this Part:
1.
An inspection by City minimum housing code enforcement staff to ascertain the maximum number of occupants of the group housing facility and compliance with all other provisions of the City Minimum Housing Standards Code.
2.
An inspection, review of any required plans, and installation of all improvements necessary for the group housing to secure the determination specified herein and to comply with the provisions of this Chapter and any other City development standards.
3.
An inspection by City fire prevention inspectors to ascertain compliance with the Fire Safety Code of the City of Orlando.
4.
Application for and securing the appropriate required Business Tax Receipt (BTR).
5.
A determination by the State officials that an inspection has been accomplished in accordance with state law or is not required for the particular group housing facility.
6.
Securing any and all other City, County, County Health Department, and State compliances, approvals, inspections or permits.
D.
Evidence of Determination. The existence of a valid determination must be evidenced in a form and manner specified by the Zoning Official and must be presented if requested. This evidence of the existence of a valid City of Orlando determination must include the stated capacity for the group housing facility.
E.
Existing Group Housing Must Obtain Determination. Any group housing existing and operating at the time of the original effective date of these group housing regulations shall be required to secure a permit and apply for all inspections and land use approvals set forth herein, or cease operating as a group housing facility.
(Ord. No. 2018-45, § 3, 8-20-2018, Doc. #1808201202)
A.
Distance Separation Determination Required. The group care facility shall receive a Zoning Official Determination prior to the issuance of any building permit or business tax receipt for the facility, to ensure compliance with the distance separation requirements of Section 58.545. Prior to reviewing the proposed use for compliance with the distance separation requirements, the Zoning Official shall first make a determination on what level of care the facility is being proposed (residential, intensive, or transient) and whether or not the facility is a Type A, B, or C, using the classification chart in 58.540, the definitions in Chapter 66, and any relevant information from a state licensing agency.
B.
Business Tax Receipt Required. No group care facility shall operate without obtaining and annually renewing a Business Tax Receipt (BTR) from the Permitting Division.
(Ord. No. 2018-45, § 3, 8-20-2018, Doc. #1808201202)
A.
Type A Group Care Facilities
1.
Minimum Distance Between Facilities: In one and two family residential zoning districts, no Type A group care facility shall be located within a radius of 1,000 feet of another group care facility.
2.
Multi-Family Developments: No Type A group care facility proposed to locate within a multi-family dwelling unit shall cause the total number of Type A group care facilities to exceed 3.0 percent of all dwelling units on a development site, or six units, whichever is greater.
B.
Type B and C Group Care Facilities (7 or more residents)
1.
Minimum Distance Between Facilities: No Type B or C group care facility shall be located within a radius of 1200 feet of another existing group care facility.
2.
Distance from One and Two Family Zoning Districts: A Type B or C group care facility is presumed to substantially alter the nature and character of the area and shall not be located within 500 feet of an R-1AA, R-1A, R-1, R-1N, R-2A, or R-2B zoning district or property designated for single-family uses in an approved PD.
C.
Waivers. Waivers to the distance separation requirements of this Section may be approved through the conditional use permit process (see Section 58.542).
(Ord. No. 2018-45, § 3, 8-20-2018, Doc. #1808201202)
In addition to the Zoning District and Use Regulations of Figures 1—2, all Mobile Home Developments shall be designed and developed in accordance with the following:
Growth Management Plan. All Mobile Home Developments shall be designed and developed in a manner consistent with the City's adopted Growth Management Plan.
Subdivision Design Standards. All Mobile Home Developments shall be designed in accordance with the subdivision design requirements of Chapter 65, Part 3.
Street Design Standards. Streets within Mobile Home Developments may be public or private, but in no case shall any mobile home space take direct access from any external street or thoroughfare. All streets in Mobile Home Developments shall be designed in accordance with Chapter 61, Part 2.
Required Improvements. All Mobile Home Developments shall be provided with the improvements required by any other applicable Part of this Chapter.
(Ord. of 9-16-1991, Doc. #25094)
In addition to the Zoning District and Use Regulations of Figures 1—3 and the standards ordinarily applying to the review of Subdivision Plat applications, the following standards shall apply:
Perimeter Setbacks. The area devoted to perimeter and thoroughfare setbacks shall not be considered to be part of any mobile home space, nor shall any structure be located in the setback area. All perimeter and thoroughfare setbacks shall be landscaped in accordance with the Bufferyard standards set forth in Chapter 60.
Access to Mobile Home Spaces. Each mobile home space in a Mobile House Development shall have unobstructed access at least 15 feet wide to a public or private street within the boundary of the Mobile Home Development which shall have unobstructed access to an exterior public street. No mobile home space shall be directly accessible from any exterior street, alley or thoroughfare.
Accessory Structures. An accessory structure when attached to a mobile home shall for purposes of separation requirements be considered to be part of the mobile home. No detached accessory structure shall be located on the front half of a mobile home space.
Foundation and Skirting. Each mobile home shall be placed on a foundation or tied down in accordance with building code or other applicable law and provided with skirting.
Recreational Vehicles Prohibited. Recreational Vehicles shall be prohibited as a principal use in any Mobile Home Development, except in a separate designated area designed and maintained in accordance with the Recreational Vehicle Park regulations set forth in Part 4I of Chapter 58.
(Ord. of 9-16-1991, Doc. #25094)
No park shall be available for use or occupancy prior to the issuance of a certificate of occupancy by the City, and no certificate of occupancy shall be issued unless the park has complied with all provisions of this Part. In addition, the following standards shall apply:
(a)
Only one mobile home containing a single family dwelling unit shall be permitted on each mobile home space.
(b)
No portion of a park shall be intended for occupancy less than 30 days.
(c)
A mobile home shall not be occupied for dwelling purposes unless it is properly placed on a mobile home stand and connected to water, sewerage and electrical utilities and tied down according to Building Code standards.
(Ord. of 9-16-1991, Doc. #25094)
The licensee or permittee or duly authorized attendant, caretaker or resident manager shall be in charge at all times to keep the mobile home development, its facilities and equipment in a clean, orderly and sanitary condition. The attendant, caretaker or resident manager shall be answerable, with the licensee or permittee, for the violations of any provision of this Ordinance to which the licensee or permittee is subject.
(Ord. of 9-16-1991, Doc. #25094)
Mobile Home Development may be approved in connection with Preliminary Subdivision or Minor Plat approval wherever such development is permitted under this Chapter. An applicant wishing to undertake Mobile Home Development shall specifically request such approval in connection with application for Preliminary Subdivision or Minor Plat approval.
(Ord. of 9-16-1991, Doc. #25094; Ord. No. 2010-31, § 1, 8-30-2010, Doc. #1008301109)
Multiplex standards of this Part are intended to conserve the general character of established neighborhoods which have developed as a mixture of single family dwelling units, duplexes, and small apartment buildings of 3 to 8 dwelling units. New development shall maintain the prevailing bulk, height, and general design of the surrounding structures and buildings. This type has the appearance of a medium-sized single family home or multiple small-scale structures and is appropriately scaled to fit within primarily single-family neighborhoods or into medium-density neighborhoods. This type enables appropriately-scaled, well-designed higher densities and is important for providing a broad choice of housing types and promoting infill development.
(Ord. of 9-16-1991, Doc. #25094; Ord. 5-20-1996, Doc. #29361; Ord. No. 2018-44, § 4, 9-4-2018, Doc. #1809041202)
In addition to the Zoning District and Use Regulations of Figures 1—2 and Traditional City standards where applicable, the development shall conform to all of the review standards set forth in Part 3 of Chapter 65.
(Ord. of 9-16-1991, Doc. #25094; Ord. 5-20-1996, Doc. #29361)
Standards.
A.
Minimum Lot Size Standards. Meet the minimum lot depth and minimum site frontage standards for that zoning district.
B.
Maximum Residential Density. Determined by the maximum density of each zoning district. If the result is a decimal, densities with 0.5 or higher may be rounded up to the nearest whole number. R-2B lots are limited to 5 units.
C.
Unit size. The majority of units on a single development site must be 750 square feet or less, or comply with multi-family regulations.
D.
Building Setbacks. Defaults to zoning district.
E.
Minimum Building Separation. 10 feet.
F.
Frontage Requirements. The front door of the unit(s) facing the primary street frontage must face the street. Rear units may face the front of the lot or may be side-oriented to face other units. Rear-facing units are not allowed.
G.
Vehicular Use Area. Parking is not permitted between the front building(s) and the street, but is permitted on the side and the rear of the building(s).
H.
Pedestrian Access. A pedestrian path from the public sidewalk to the primary pedestrian entrance is required for the unit(s) facing the primary street frontage.
I.
Building Height. The maximum height defaults to the zoning district or three-stories, whichever is less.
J.
Single-Family Home or Duplex Preservation. A master plan application is required for eligible sites that desire to expand beyond the existing one family or two family unit(s).
1.
Each new unit will be limited to 750 square feet.
2.
In historic districts, the existing structures must be preserved and maintained, unless otherwise approved by the Historic Preservation Board.
K.
Driveways. Driveways must meet the following minimum requirements:
1.
The maximum width is 24 feet at the property line.
2.
Up to four units served: The minimum width is 14 feet at the property line, narrowing to 12 feet at a point 15 feet from the property line.
3.
Five or more units served:
a)
One-way (access to two streets): The minimum width is 14 feet at the property line, narrowing to 12 feet at a point 15 feet from the property line.
b)
Two-way: The minimum width is 20 feet wide at the property line, narrowing to 16 feet at a point 15 feet from the property line.
4.
For preservation of existing structures or significant trees, modifications may be granted by the Transportation Official through the master plan application.
L.
Maneuvering areas for perpendicular parking spaces must meet the following requirements:
1.
A minimum of 22 feet clear pavement is required behind each parking space. This 22 feet width may be incorporated into the width of a shared driveway or an alley.
2.
The 22-foot width is measured from the face of the garage door, the back of a carport, or the back of an uncovered parking space, as applicable.
M.
A minimum 2-foot wide clear area must be maintained adjacent to any backing and maneuvering area that is less than 24 feet wide, and along both sides of the driveways throughout the development site.
1.
This area may be decorative pavement, or landscaped with grass or other groundcover.
2.
This area may not contain a fence, wall or landscaping that includes species with mature heights greater than 18 inches.
3.
This area may only be included in the minimum width of any required bufferyard if it is not paved, and if the required landscaping and/or fences can be accommodated outside the clear area.
N.
Multiplex developments must follow the procedures for a master plan review as specified under Section 65.331.
(Ord. of 9-16-1991, Doc. #25094; Ord. 5-20-1996, Doc. #29361; Ord. No. 2018-44, § 4, 9-4-2018, Doc. #1809041202)
A.
Articulation. Each façade that faces a street must include projections or recesses such as a front porch, front stoop, bay window, building recesses, or other feature to prevent a boxy shape.
B.
Orientation. All buildings must include a primary pedestrian entrance that faces a street. For projects with multiple principal buildings, the front units must face the street, while more flexibility will be allowed for the internal and rear units.
C.
Transparency. A minimum 15% transparent material is required on all façades facing a public street, private street, or courtyard, on each story below the roof line. A minimum 10% transparent material is required on all interior side façades on each story below the roof line.
D.
Landscaping. Multiplex developments are required to meet the multi-family standards of the landscaping code (Chapter 60) for the development site as a whole. In addition, stormwater swales or ponds are not allowed in the front or street side setbacks unless low impact design standards for rain gardens are met.
E.
Mechanical Equipment Screening. Utilities such as backflow preventers, metering boxes, gang mailboxes, and mechanical equipment must be placed to the side or rear of the site, and must be screened with landscaping, a decorative enclosure, or a wall.
F.
Compatibility. The appearance review official will consider the following factors when evaluating the compatibility of multiplex development with the surrounding neighborhood:
1.
Logic of overall design.
2.
Site plan.
3.
Landscaping and pervious surface.
4.
Driveway design, circulation and parking.
5.
Environmental features and tree preservation.
6.
Alignment of curb cut(s) to maximize ability to plant street trees and preserve on-street parking.
7.
Where applicable, compliance with the traditional city standards and requirements for residential development in Section 62.600.
8.
Compatibility with adjacent land uses.
9.
Features of existing development and neighborhood form.
The City may also make recommendations pertaining to alternate setbacks and building height. Although these items are regulated by code, adjustments may be appropriate to improve neighborhood compatibility, address site constraints, or improve the design and character of the building.
G.
Architectural Style. Each building must have consistent architectural elements that create a recognizable architectural style, including but not limited to classical revival, colonial revival, craftsman, Florida vernacular, Mediterranean revival, mid-century modern, minimal traditional, Florida ranch, or other style identified in an industry-accepted architectural guidebook. All architectural elements, details, features, and finishes on the exterior of the building must be both consistent and compatible with the architectural style employed. Architectural elements and variations cannot be restricted to a single façade and must be wrapped along the entire length of all street-facing facades. The appearance review official will consider the following elements when evaluating conformance with this requirement:
1.
Roof type, pitch, form, material and overhang.
2.
Exterior elevation, materials and finishes.
3.
Window proportions, groupings, trim, muntins and details.
4.
Column size, taper, base and moulding.
5.
Balcony width and depth.
6.
Porch width, depth, elevation and railings.
7.
Chimney details.
8.
Dormers/parapets.
9.
Brackets, shutters, railings, rafter tails and decorative details.
10.
Transparency.
11.
Building projections and recesses.
12.
Entryway and front door design.
13.
Garage placement and door design.
14.
Exterior lighting.
15.
Incorporation of architectural features into any fire separation wall.
16.
Other generally accepted architectural elements, as determined appropriate by the appearance review official.
Together, these elements should create a cohesive structure that avoids boxy, flat facades; highlights architectural features using authentic and durable materials; provides distinct identity to each unit in a manner appropriate to the style employed; and minimizes the visual impact of garages from the public right-of-way.
(Ord. No. 2018-44, § 4, 9-4-2018, Doc. #1809041202)
Multi-family standards of this Part are intended to provide flexible building and site design in locations where residential redevelopment and development is desired at medium to high intensity.
(Ord. of 9-16-1991, Doc. #25094; Ord. No. 2018-44, § 4, 9-4-2018, Doc. #1809041202)
In addition to the Zoning District and Use Regulation of Figures 1—2 and Traditional City Standards where applicable, the development shall conform to all of the review standards set forth in Part 3 of Chapter 65.
(Ord. of 9-16-1991, Doc. #25094)
A.
Minimum Lot Size Standards. Must meet the minimum lot depth and site frontage standards for that zoning district.
B.
Frontage Requirements. The front unit(s) must face the front. Each unit must be developed consistent with one of the two following options:
1.
Frontage on a public street, or a private street that meets public street design standards.
2.
Modifications may be granted through the master plan application for rear units to front on a courtyard or a water body.
C.
Pedestrian Access. A pedestrian path from the public sidewalk to the primary pedestrian entrance is required.
D.
Building Setbacks. For street facing units, each unit must meet the setbacks for the applicable zoning district, except that as part of master plan or CUP review, maximum setbacks in AC and MU districts may be increased to provide a landscaped front yard and/or street side yard.
E.
Vehicular Use Area. Parking is not permitted between the building and the street, but is permitted on the side and rear of the building.
F.
Vehicular Access for 31 to 99 units. Development sites with 31 to 99 units must provide a minimum of 2 access points to the surrounding street network. One of these access points may be operated as an "Emergency Only" access and may use a stabilized, pervious surface approved by the City Engineer.
G.
Vehicular Access for 100 or more units. Development sites with 100 or more units must provide a minimum of 2 access points with impervious surfaces suitable for all users.
H.
Cross Access. Each project must provide cross access to adjacent properties, unless wetlands, lakes, limited access highways or other physical barriers prevent connectivity, as required by GMP Transportation Policy 1.10.5.
I.
Minimum Building Separation. 20 ft.
J.
Residential Zoning District Setback. 20 ft.
K.
Pedestrian Circulation. A network of pedestrian connections must be designed to connect all entrances of each building to the right-of-way, as required by Section 61.314(a) and (c).
L.
Crosswalks. All crosswalks at driveways and curb cuts must be designed with pavers and/or textured colored concrete or similar to clearly define the pedestrian zone, as required by Section 61.314(e). Thermoplastic paint may be incorporated, but cannot meet this condition alone.
(Ord. of 9-16-1991, Doc. #25094; Ord. 5-20-1996, Doc. #29361; Ord. No. 2018-44, § 4, 9-4-2018, Doc. #1809041202)
A.
Articulation. Each façade that faces a street must include projections or recesses such as a front porch, front stoop, bay window, building recesses, or other feature to prevent a boxy shape.
B.
Transparency. A minimum 15% transparent material is required on all façades facing a public street, private street, or courtyard, on each story below the roof line. A minimum 10% transparent material is required on all interior side façades on each story below the roof line.
C.
Landscaping. Developments are required to meet the multi-family standards of the landscaping code (Chapter 60) for the development site as a whole. In addition, stormwater swales or ponds are not allowed in the front or street side setbacks unless low impact design standards for rain gardens are met.
D.
Mechanical Equipment Screening. Utilities such as backflow preventers, metering boxes, gang mailboxes, and mechanical equipment must be placed to the side or rear of the site, and must be screened with landscaping, a decorative enclosure, or a wall.
E.
Compatibility. The appearance review official will consider the following factors when evaluating the compatibility of the development with the surrounding neighborhood:
1.
Logic of overall design.
2.
Site plan.
3.
Landscaping and pervious surface.
4.
Driveway design, circulation and parking.
5.
Environmental features and tree preservation.
6.
Alignment of curb cut(s) to maximize ability to plant street trees and preserve on-street parking.
7.
Where applicable, compliance with the traditional city standards and requirements for residential development in Section 62.600, of this Code.
8.
Compatibility with adjacent land uses.
9.
Features of existing development and neighborhood form.
Staff may also make recommendations pertaining to alternate setbacks and building height. Although these items are regulated by code, adjustments may be appropriate to improve neighborhood compatibility, address site constraints, or improve the design and character of the building.
F.
Architectural Style. Each building must have consistent architectural elements that create a recognizable architectural style, including but not limited to classical revival, colonial revival, craftsman, Florida vernacular, Mediterranean revival, mid-century modern, minimal traditional, Florida ranch, or other style identified in an industry-accepted architectural guidebook. All architectural elements, details, features, and finishes on the exterior of the building must be both consistent and compatible with the architectural style employed. Architectural elements and variations must not be restricted to a single façade and must be wrapped along the entire length of all street-facing facades. The appearance review official will consider the following elements when evaluating conformance with this requirement:
1.
Roof type, pitch, form, material and overhang.
2.
Exterior elevation, materials and finishes.
3.
Window proportions, groupings, trim, muntins and details.
4.
Column size, taper, base and moulding.
5.
Balcony width and depth.
6.
Porch width, depth, elevation and railings.
7.
Chimney details.
Together, these elements should create a cohesive structure that avoids boxy, flat facades; highlights architectural features using authentic and durable materials; provides distinct identity to each unit in a manner appropriate to the style employed, and minimizes the visual impact of garages from the public right-of-way.
(Ord. No. 2018-44, § 4, 9-4-2018, Doc. #1809041202)
The Zero-Lot-Line Development standards of this Section are intended to promote:
(a)
the more efficient use of land, as compared with the typical single-family development, making available needed housing at a more affordable cost;
(b)
the design of dwellings that integrate and relate internal-external living areas resulting in more pleasant and enjoyable living facilities; and
(c)
by placing the dwelling against one of the property lines, permitting outdoor space to be grouped and utilized to its maximum benefit.
(Ord. of 9-16-1991, Doc. #25094)
In addition to the Zoning District and Use Regulations of Figures 1—2 and the standards ordinarily applying to the review of Subdivision Plat applications, the following standards shall apply:
Townhome Development Standards. The development shall conform to the applicable review standards for Townhome Development set forth in Chapter 58, Part 3B except that accessory buildings may be located outside of building restriction lines. Decks may be constructed in up to fifty (50) percent of any required side yard setback.
Building Design. Along any Zero-Lot-Line yard, the wall of any dwelling unit shall be constructed without doors. No portion of the dwelling unit shall project over any property line, except the eaves of the roof, hose bibbs, windows sills and similar minor appurtenances.
Access and Maintenance Easements. Easements shall be placed on the lot abutting any Zero-Lot-Line yard to permit access for maintenance, construction, drainage and other purposes for the benefit of the Zero-Lot-Line lot. The easements shall extend at least six feet perpendicular to the Zero-Lot-Line dwelling unit, and shall also extend at least ten feet beyond the dwelling unit along the lot line to assure access.
(Ord. of 9-16-1991, Doc. #25094; Ord. No. 2018-44, § 4, 9-4-2018, Doc. #1809041202)
These Zero-Lot-Line development standards are intended to allow a number of different building site layout alternatives. Among these are:
Zero-Lot-Line. The dwelling unit has a zero setback from the side and/or rear lot line.
Interlocking Lot Design. The side and rear walls of the garage both have zero yard setbacks. No other exterior walls of the dwelling unit have a zero setback. The building site layout must:
(a)
Minimize direct views between rear-facing windows of back-to-back dwelling units.
(b)
Concentrate the limited rear yard space into a usable configuration and maximize the use of the simple side yard.
Z-lots and Angled Z-lots. The side lot lines are modified to create a Z shape which allows each unit to have side yards or alternating sides while maintaining the required Z-Lot minimum zipper building maintenance separation.
(Ord. of 9-16-1991, Doc. #25094)
Zero-Lot-Line Development may be approved in connection with Preliminary Subdivision or Minor Plat approval for one or two family dwellings wherever such dwellings are permitted under this Chapter. An applicant wishing to undertake Zero-Lot-Line Development shall specifically request such approval in connection with application for Preliminary Subdivision or Minor Plat approval.
The City Council may also require Zero-Lot-Line Development as a condition of Preliminary Subdivision or Minor Plat approval where, in the review of the Preliminary Subdivision, they find that Zero-Lot-Line Development is essential for the provision of open space, for protection of natural features or other amenities, for efficient utilization of land or facilities, or for the implementation of the policies of the City's adopted Growth Management Plan.
Effect of Approval. Where Zero-Lot-Line Development has been approved for a Preliminary Subdivision under this Part, the Final Plat shall substantially conform to the Zero-Lot-Line approval.
Modification of Standards. When, in the judgment of the Municipal Planning Board, reasonable development of a building site justifies such action, the front and rear yards may be reduced up to a maximum of 40 percent. No other variances shall be considered by the Board of Zoning Adjustment.
(Ord. of 9-16-1991, Doc. #25094; Ord. No. 2010-31, § 1, 8-30-2010, Doc. #1008301109)
Development Site Standards.
Min. Development Site Size: 0 ft.
Min. Perimeter Setback: 10 ft.
Maximum ISR: 0.55.
Min. Lot Depth: 100 ft.
Principal Building Setbacks. Except as otherwise specifically permitted by this Chapter the following standards shall apply.
(Ord. of 9-16-1991, Doc. #25094)
The corners of each mobile home space shall be clearly marked on the ground by permanent flush stakes or other permanent markers.
(Ord. of 9-16-1991, Doc. #25094)
A mobile home stand shall be provided on every mobile space to accommodate each mobile home and its attached accessory structures such as expandable rooms, enclosed patios, garages or other structural additions. The stand shall be improved to provide an adequate foundation for the placement and tie down of the mobile home, thereby securing the superstructure against uplift, sliding, rotation and overturning.
(Ord. of 9-16-1991, Doc. #25094)
Each mobile home space shall be provided with a hard-surfaced patio, except where an equivalent screened room or other outdoor space is provided as part of the mobile home itself. The patio shall be located conveniently to the entrance of the mobile home and at an elevation at least as high as that of the mobile home stand.
(Ord. of 9-16-1991, Doc. #25094)
Each mobile home space shall be provided with the electrical, plumbing and other utility installations necessary to provide services for lighting, cooling, heating and sanitary facilities for a mobile home, and shall conform to the City of Orlando Codes relative to each such installation.
(Ord. of 9-16-1991, Doc. #25094)
A minimum of 90 cubic feet for general storage space shall be provided on each mobile home space, or in compounds located within a reasonable distance, in order to provide facilities for the active storage of outdoor equipment, furniture and tools, and for the inactive storage of such other material as is used only seasonally or infrequently by the typical tenant and cannot be conveniently stored in the typical mobile home.
Development Site Standards.
Min. Development Site Area: 2 acres.
Min. Open Space: 25% (exclusive of perimeter set back areas).
Min. Perimeter Setback: 25 feet.
Max. Residential Density: Varies by zoning district. See Chapter 58, Part 2, Figures 1 and 2.
Principal Building Setbacks. Except as otherwise specifically permitted by this Chapter the following standards shall apply.
Min. Front yard: 20 ft.
Min. Side Yard: 7.5 ft.
Min. Street Side Yard: 15 ft.
Min. Rear Yard: 7.5 ft.
Mean lot width: 40 ft.
Minimum area each lot: 3500 sq. ft.
Min. Lot Depth: 0 ft.
(Ord. of 9-16-1991, Doc. #25094)