- SITE DESIGN STANDARDS
The purpose of this chapter is to provide minimum landscaping, screening and buffering standards; to provide proper access, visibility, parking, lighting, building design and outdoor storage; to protect and improve the Village's appearance; and to mitigate the environmental and aesthetic impacts of new development.
(Ord. 2012-012, 3-13-2012)
A.
Applicability. Any use for which submittal of a site plan is required shall provide landscaping in accordance with the regulations of Chapter 10. (Exception to the landscaping requirements: single-family uses, agricultural land uses and additions to existing buildings with insufficient site area). When expanding a development, if additions or enlargements are 50 percent or more of the square footage of the existing uses, structures, or vehicular use areas, then the landscaping requirements shall apply to the entire site. If the additions or enlargements are less than 50 percent of the square footage of the existing uses, structures, or vehicular use areas, then only the building foundation and the paved area requirements shall apply to the expanded structure or vehicular use area.
B.
Landscape Plan Requirements. A landscape plan providing the following information shall be submitted with the site plan at the time of application for building permit and/or with a subdivision plat where applicable:
1.
North arrow, scale, date of preparation and revisions;
2.
Location of all proposed and existing buildings, structures and pavement;
3.
Location and dimensions of all property lines;
4.
Location of all existing or proposed ponds, lakes, watercourses, or drainage facilities;
5.
Location of the 100 year floodplain on the site, if applicable;
6.
Location, size and common name of any existing trees or shrubs to remain on-site;
7.
Location of all landscaping proposed for the site including trees, shrubs, ground cover, ornamental grasses or flower beds;
8.
Location of all existing or proposed signs, walls, fences, earthen berms (drawn at one foot contour interval), site furniture, lights, fountains and/or sculptures on the site;
9.
Location of all existing or proposed sidewalks, bike trails, pedestrian paths, etc. on the site;
10.
Plant list for all existing or proposed trees or shrubs on the site, including:
a.
Common name.
b.
Quantity.
c.
Installation size.
d.
Height/width at maturity.
e.
Point value per tree/shrub (as defined below).
11.
Location of all existing or proposed curb lines and curb cuts for streets, alleys, or parking lots;
12.
Schedule of total required points, as defined herein, classified by trees or shrubs, and total points provided; and
13.
Additional information as determined by the Zoning Administrator to be necessary for approval of the proposed plan.
C.
Calculating Landscaping and Bufferyard Requirements. In calculating the number of required landscaping points according to the provisions of this section, all area and distance calculations shall be rounded up to the nearest whole number of square feet or linear feet. Any partial plant derived from the required calculations (for example twenty-three and three-tenths (23.3) canopy trees) shall be rounded up to the nearest whole plant (24 canopy trees).
D.
Landscaping Points and Measurements. All landscaping requirements are stated in terms of the number of landscaping points required. The required number of landscaping points is dependent upon the type of land use, the zoning district, and the size of the development. A different number of points is awarded for each plant, depending upon its typical growth rate, its mature height, and whether it is a deciduous or an evergreen species. Shrubs may be replaced with ornamental grasses and perennials; however, such replacements shall not exceed 50 percent of the required number of shrubs. A minimum installation size is required for each of these plant categories. These requirements are as follows:
Table 8-10-2a: Landscaping Points and Minimum Installation Sizes
E.
Measurement for Landscaping Requirements. A minimum amount of landscaping points, based upon the zoning district, is required for:
1.
The linear feet of building foundations,
2.
The gross floor area of buildings on developed lots,
3.
The linear feet of street frontage, and
4.
The total combined area of paved areas.
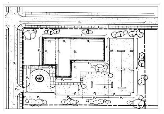
The following diagram illustrates the measurement techniques used to determine these requirements:
Landscape Measurements
Landscaping Calculation Equations for this Example:
Paved Area = (P1 x P2) + (P3 x P4) + (P5 x P6) + (P7 x P8) + (P9 x P10)
Street Frontage = S1 + S2
Building Perimeter = F1 + F2 + F3 + F4 + F5 + F6 + F7 + F8
Building Floor Area = (B1 x B2) + (B3 x B4) + (B5 x B6)
F.
Building Foundations. This section requires that certain buildings or building additions constructed after the effective date of this chapter be accented by a minimum amount of landscaping placed near the building foundation.
Sample configuration best suited for building foundations
1.
Landscaping required by this section shall be placed so that at maturity, the plant's drip line is located within ten feet of the building foundation. Such landscaping shall not be located in those areas required for landscaping as street frontages, paved areas, protected green space areas, reforestation areas, or bufferyards.
2.
For each 100 feet of building foundation perimeter, the number of landscape points identified in Table 8-10-2b shall be provided on a prorated basis, and installed and permanently maintained per the requirements of this chapter.
3.
Climax trees and tall trees shall not be used to meet this requirement. The intent of this section is to require a visual break in the mass of buildings and to require a visual screen of a minimum of six feet in height for all exterior perimeter appurtenances (such as HVAC/utility boxes, standpipes, stormwater discharge pipes and other pipes).
4.
Where the officially approved site plan depicts a future building extension, the foundation landscaping requirement shall be calculated by measuring the length of the total perimeter. However, foundation plantings need only be installed based on the landscape points calculated from the portions of the building perimeter that will not be affected by building extension. If this results in point requirements, which are not met through the initial planting, then a performance bond for remaining plantings shall be deposited with the Building Department.
G.
Street Frontages. This section requires that street frontages on certain lots developed after the effective date of this chapter contain a minimum amount of landscaping in those areas which abut the right-of-way of a public street.
Sample configuration best suited for street frontages
1.
All landscaping used to meet this requirement shall be located within ten feet of the public right-of-way. In no instance shall such landscaping be located within a public right-of-way. Landscaping shall not impede vehicle or pedestrian visibility.
2.
For every 100 linear feet of street frontage where a developed lot abuts a public street right-of-way, the number of landscape points identified in Table 8-10-2b shall be provided on a prorated basis and installed and maintained per the requirements of this chapter.
3.
Shrubs shall not be used to meet this requirement. A minimum of 50 percent of all points shall be devoted to climax and/or tall trees and a minimum of 30 percent of all points shall be devoted to medium trees.
Sample configuration best suited for paved areas
H.
Paved Areas. This section requires that paved areas on certain lots developed after the effective date of this chapter contain a minimum amount of landscaping within, or within ten feet of, the paved area. The intent is to require a continuous visual screen of parking areas from public rights-of-way at a minimum height of 40 inches.
1.
A minimum of 360 square feet of landscaped area, located within ten feet of the paved area, is required for the placement of every 100 landscaping points. The landscaped area does not have to be provided in one contiguous area. Plants used to fulfill this requirement shall visually screen parking, loading and circulation areas from view from public streets.
2.
For every 20 off-street parking stalls or 10,000 square feet of pavement (whichever yields the greater landscaping requirement) located in a development, the number of landscape points identified in Table 8-10-2b shall be provided on a prorated basis and installed and maintained per the requirements of this chapter. A minimum of 30 percent of all points shall be devoted to climax and/or tall trees and a minimum of 40 percent of all points shall be devoted to shrubs. Landscaping within parking areas shall not obstruct visibility of motorists and pedestrians.
3.
Parking lot design shall employ interior landscaped islands with a minimum of 333 square feet (or two parking spaces) at all parking isle ends, and in addition shall provide a minimum of one interior landscaped island of a minimum of 333 square feet in each parking isle for every 20 cars in that aisle. Aisle-end islands shall count toward meeting this requirement if the row only consists of 20 spaces or less. Landscaped medians shall be used to break large parking areas into distinct pods, with a maximum of 100 spaces in any one pod.
I.
Developed Lots. This section requires that certain lots developed after the effective date of this chapter contain a minimum amount of landscaping.
Sample configuration best suited for developed lots
1.
Landscaping required by this section is most effective if located away from those areas required for landscaping as building foundations, street frontages, paved areas, protected green space areas, reforestation areas or bufferyards.
2.
The number of landscape points identified in Table 8-10-2b shall be provided on a prorated basis for every 1,000 square feet of gross floor area and installed and maintained per the requirements of this chapter.
3.
The intent of this section is to provide yard shade and to require a visual screen of a minimum of six feet in height for all detached exterior appurtenances (such as HVAC, utility boxes, standpipes, stormwater discharge pipes and other pipes.)
Table 8-10-2b: Landscaping Requirements for Regular Development
J.
Buffer Yards. When ever a side or rear yard in the R-5, MH, NB, GB, CB, LI or HI District abuts any RE, R-1, R-2 or R-3 District or any residential use within the Village limits or in any neighboring jurisdiction, a buffer yard shall be required. Buffer yards shall not be required in front yards.
1.
Depth of Yard. The buffer yard shall be ten percent of the lot width or depth, whichever is applicable. No buffer yard shall be less than ten feet in width. No buffer yard shall be required to be more than 50 feet in width. For property located on a corner lot where both the rear lot line and the interior side lot line abut property in the R-1, R-2, R-3 or R-5 district, the buffer yard depth for both required buffer yards may be determined by the lesser dimension of the lot width or lot depth.
2.
Dispute of Yard. Where there is a dispute over the location or size of the required buffer yard, the Planning and Zoning Commission shall make final determinations based on best available information.
3.
Total Points Required. The number of points that must be achieved through landscaping for buffer yards shall be based on one and one-half (1.5) required points of landscaping for each one foot of lot length along the buffer yard (one and one-half (1.5) points per foot). All landscaping required for buffer yards shall be planted within the required buffer yard, except as may be approved by the Zoning Administrator. Of the total required points, 50 percent of the total points must be achieved by using plants from the tree classification and 50 percent must be achieved by utilizing plants from the shrub classification. Of the total required points, 50 percent must be evergreen or broadleaf evergreen plantings.
4.
Berm. Where a semi-continuous berm measuring a minimum of three feet and a maximum of four feet in vertical height and not having a slope greater than three-to-one (3:1) on either side is provided, required buffer yard landscaping points may be reduced by 20 percent. Slopes may be increased above three-to-one (3:1) where retaining walls are used, subject to approval by the Zoning Administrator. No individual section of said berm may measure more than 40 feet in length. Berms should present an aesthetically-pleasing screen. The berm should be integrated into the overall landscaping plan, including landscaping on the berm where practical.
5.
Prohibited Use. All driveways, refuse containers, storage areas, aisle ways, vehicular maneuvering areas, mechanical equipment and structures are prohibited within the required buffer yard. A sidewalk or paved trail may be located within a buffer yard when used as a connection to other pedestrian and/or recreational corridors. A concrete pad for emergency exits from a building shall be permitted in the buffer yard provided that it is required by the Building Code.
6.
Activity Areas. All on-site activity areas located within 25 feet of a required buffer yard shall be screened by a fence, wall, berm, evergreen planting or combination thereof such that a substantially solid visual barrier of six feet in height is attained. Fences or walls, when provided, must be located between the activity area and the buffer yard. Activity areas shall include: refuse containers/dumpsters; storage; display of materials or merchandise; loading or unloading of passengers or goods; production assembly; processing or demolition of goods; and he parking of vehicles. Plantings provided to screen activity areas shall not count toward required landscaping.
K.
Classification of Plant Species. For the purpose of this chapter, plant materials are classified into 13 groupings: "climax tree," "tall deciduous tree," "medium deciduous tree," "low deciduous tree," "tall evergreen tree," "medium evergreen tree," "low evergreen tree," "tall deciduous shrub," "medium deciduous shrub," "low deciduous shrub," "medium evergreen shrub," "low evergreen shrub," and non-contributory plants. Species suitable for landscaping use and compatible with Boone County climate and soil factors are listed in Table 8-5-2c below. The Zoning Administrator shall review proposals for and the applicability of species not contained in this list and is authorized to approve appropriate similar species. (See Appendix A for a detailed listing of plant species and characteristics.)
Table 8-5-2c: Classification of Plants
L.
Requirements for Installation, Maintenance and Use of Landscaped and Bufferyard Areas:
1.
Installation. Any and all landscaping and bufferyard material required by the provisions of this chapter shall be installed on the property in accordance with the approved site plan, prior to the issuance of an occupancy permit for any building on the property, unless a performance bond or similar surety is deposited with the Village.
2.
Surety:
a.
If the subject property is to be occupied prior to the installation of all required landscaping and bufferyard material, the property owner shall sign an agreement stating the intent to install the landscaping with the required period. This agreement shall also contain a statement indicating that there are fines associated with not complying with this agreement.
b.
If a phase of development is approved per the requirements of this Code, required landscaping may be split into amounts which are applicable to each phase.
c.
The Zoning Administrator shall require a letter of credit, the establishment of an escrow account with the Village, or such other surety acceptable to the Village to ensure that the landscaping is installed in the event that it is not installed within the time established in the agreement authorized by subsection 1. above. The escrow agreement or other surety agreement shall be in a form reasonably acceptable to the Village and shall grant the Village the authority to draw upon the surety or escrow if the landscaping is not installed pursuant to the agreement referenced in subsection 1. The Village, or its designee, shall have the authority to enter upon the property subject to the surety or escrow and install the required landscaping without further permission from the owner. The Village shall retain the right to enforce this Title and the landscaping provision contained in this section by any legal or equitable means.
d.
Governmental units to which these bond and guarantee provisions apply may, in lieu of said contract or instrument of guarantee, file a resolution or letter from officers authorized to act in its behalf, agreeing to comply with the provisions of this chapter.
3.
Tree Preservation:
a.
All existing trees for which points are being requested must be identified by species and diameter (at breast height (DBH)) and shown on the landscape plans.
b.
Existing plant materials which meet the requirements of Section 8-10-2D. but do not qualify for bonus points as outlined in Section 8-10-2L.3.c. may be preserved on the subject property. Following the completion of development, said plants may be counted as contributing to the landscaping requirements.
c.
Trees intended to be preserved that are double the minimum planting size shall be worth a total of one and one-half (1.5) times the standard landscaping points as outlines in Appendix A.
d.
At final inspection, landscaping discovered to have been damaged may not be counted towards the required landscaping and the points shall be replaced with appropriate landscaping.
4.
All landscaping and bufferyard areas shall be seeded with lawn or native ground cover unless such vegetation is already fully established.
5.
The exact placement of required plants and structures shall be depicted on the required detailed landscaping plan shall be the decision of each property owner within the requirements of this section, except that the following requirements shall be met:
a.
Evergreen shrubs shall be planted in clusters in order to maximize their chance for survival.
b.
Where a combination of plant materials, and/or berming and/or fencing is used in a bufferyard, the fence and/or berm shall be located toward the interior of the subject property and the plant material shall be located toward the exterior of the subject property.
c.
A property owner may establish through a written agreement recorded with the Recorder of Deeds office that an adjacent property owner shall agree to provide a partial or full portion of the required bufferyard on an immediately adjacent portion of their land, thereby exempting the developer from providing all or a portion of the bufferyard on his property.
d.
In no manner shall landscaping or buffer yard materials be selected and/or located in a way that results in the creation of a safety or visibility hazard.
e.
The restrictions on types of plants listed in Sections 8-10-2F. through I. shall apply.
6.
Maintenance. The ongoing maintenance of all required landscaping and bufferyard materials shall be a requirement of this chapter and shall be the responsibility of the owner of the property on which said materials are required. This requirement shall run with the property and is binding upon all future property owners. Failure to comply with this requirement shall be considered a violation of this chapter and shall be subject to any and all applicable enforcement procedures and penalties including, but not limited to affirmative equitable relief.
7.
Utility Easements. Landscaping materials, fences and berms which are located within a duly recorded utility easement and/or a pedestrian easement shall not count toward meeting a landscaping requirement unless authorized by the Zoning Administrator; however, the width of such areas may be counted as part of a landscaping requirement.
(Ord. 2012-012, 3-13-2012)
The requirements of this section apply to all fencing, landscape walls and decorative posts equal to or exceeding 30 inches in height, for all land uses and activities. Fencing excluded from the requirements is: public utilities and local, state, or federal government uses which may use up to eight foot fences with four courses of barbed wire regardless of the applicable bulk regulations of the zoning district.
A.
Permit Required. No fence shall be constructed unless a permit is issued by the Building Official. Application for a permit shall be on forms prescribed by the Building Official and shall be accompanied by a description of the fence and materials to be used in construction of the fence, location of the fence or other evidence as to the location of the property line and the fence in relation to the property. The property PINs shall be exposed to verify proper placement of the fence.
B.
Standards.
1.
Materials:
a.
Residential Districts. Acceptable materials for constructing fencing, landscape walls, and decorative posts include wood, stone, brick, wrought iron, PVC/ABS and chain link, except that wire mesh fencing is not permitted within required front yard or street yard areas. All finished exteriors of fence shall be colored in a uniform manner with the exception of fluorescent colored paint which is prohibited.
b.
Nonresidential Districts. Acceptable materials for constructing fencing, landscape walls, and decorative posts include wood, stone, brick, wrought iron, PVC/ABS and chain link. Barbed wire fencing shall not be permitted.
c.
Temporary Fencing. Temporary fencing (including the use of wood or plastic snow fences for the purposes of limiting snow drifting between November 1 and April 1), protection of excavation and construction sites, and the protection of plants during grading and construction is permitted for up to 365 consecutive days.
d.
Snow Fences. Snow fences constructed of wood and wire, and/or plastic shall be permitted only as temporary fences.
2.
Location:
a.
Fences shall not be constructed within the front yard setback, except for in Section 8-10-3B.2.b.ii.
b.
On residential property the following exceptions may be permitted to the location of fences:
i.
Ornamental fences not exceeding six feet in length in any direction nor more than four feet in height may be erected at the corner of each lot.
ii.
Fences along the one side abutting a street of a corner lot may extend beyond the building setback line at a distance of 50 percent of the distance between the building setback line and the property line.
c.
Dog run enclosures shall be located not more than six feet from any property line.
d.
No fence, structure or planting shall be maintained in such a manner that is visibility obstructing of persons using the streets, sidewalks or driveways on or adjacent to such a yard. No such fence, structure or planting shall be located within the sight triangle, the sides of which are formed by the right-of-way lines of tow intersecting streets, or a street and a driveway, or a street and an alley. The length of the sides of said triangle shall be 25 feet along the street right-of-way that intersect and ten feet along the right-of-way and the driveway or an alley when a street intersects with an alley or a driveway.
3.
Maximum Height:
a.
No fence shall be constructed or erected in any residential, commercial or industrial district to a height exceeding six feet, except where otherwise specified in this Code.
b.
Fences permitted in the front yard per Section 8-10-3B.2.b.ii. shall not exceed four feet in height.
c.
Fences which enclose public schools, public property, public utilities, athletic fields, tennis courts or similar facilities, but not including parks within only playground equipment may be constructed or erected to a height not to exceed ten feet.
d.
Where business or industrial property is located adjacent to residentially zoned property and where screening is required by applicable codes or otherwise such screening shall be a total of six feet in height.
4.
Orientation. Any and all fences, landscape walls, or decorative posts shall be erected so as to locate visible supports and other structural components toward the subject property. All finished sides of a fence shall face out from the interior of the lot on which the fence is located and shall not include any signage that is not integral to the construction elements of the fence. All gates shall be installed so that they swing into the subject property and shall have a self closure and self-closing lock to hold the gate shut at all times when not in use.
5.
Maintenance. Any and all fences, landscape walls, or decorative posts shall be maintained in a structurally sound and attractive manner. Wood fencing shall be treated with a wood preservative and/or painted.
C.
Prohibited Fencing. It is unlawful to erect or maintain anywhere in the Village a fence equipped with or having barbed wire spikes or any similar device or any electric fence charged sufficiently to cause shock within seven feet of the ground level, except for fences installed pursuant to authority of the Village Board acting under Section 7-11-2 of the Building Code.
D.
Existing Fences; Damage or Destruction. Any fence in existence as of the effective date of this chapter shall be exempt from the provisions of this chapter with the exception of barbed wire fences, wire mesh fences, electrified fences and swimming pool enclosures. Upon the substantial damage or destruction or voluntarily removal of such an existing fence, any repaired reconstructed or new fence shall be subject to the provisions of this chapter.
(Ord. 2012-012, 3-13-2012)
A.
Purpose. The purpose of this section is to regulate screening to minimize the visibility of mechanical equipment, refuse containers, and any permitted outdoor storage.
B.
Applicability. The requirements of this section apply to all mechanical equipment whether building- or ground-mounted, refuse containers, and any permitted outdoor storage as approved through the site plan review process.
C.
Standards:
1.
Mechanical equipment, refuse containers, and any permitted outdoor storage shall be fully concealed from on-site and off-site ground level views with materials identical to those used on the building exterior; however, painted or stained gates or landscaping may be used as approved through the site plan review process.
2.
The use of varying roof heights and parapets shall be employed rather than fence-type screening to screen rooftop mechanicals.
3.
The use of landscaping or building wall extensions shall be employed rather than fence-type screening to screen ground mechanicals, refuse containers, and permitted outdoor storage areas.
(Ord. 2012-012, 3-13-2012)
A.
Building Design and Construction Requirements for Business Districts: All buildings hereafter constructed, expanded, remodeled or otherwise improved within these districts shall be designed in such a manner so that it provides a basic harmony with and not detract from the overall attractiveness of surrounding development and shall be constructed of the following materials:
1.
Brick.
2.
Concrete masonry. Units shall be those generally described by the National Concrete Masonry Association as "customized architectural concrete masonry units" or shall be broken faced brick type units with marble aggregate or split face or broke off concrete block. There shall be no exposed concrete block on the exterior of any building. Any concrete masonry units that have a gray cement color shall be coated.
3.
Concrete may be poured-in-place, tilt-up, or precast. Poured-in-place and tilt-up walls shall have a finish of stone, a texture or a coating. Textured finish, except in special cases, shall be coated. Precast units shall be coated. Coating shall be an approved cementatious or epoxy type with a ten year minimum life expectancy.
4.
Natural stone.
5.
Any other material approved by Village.
6.
Metal panels may be used only to accentuate or as a finish material within these districts. Any metal panel proposed for use within these districts as a finish material or to accentuate building shall be entirely coated with a colorfast, abrasion, and corrosion resistant, long life (minimum of 20 years) finish that is resistant to chemicals, withstands temperature extremes, and has a low permeability. Any material utilized to attach the metal panels to the building shall be concealed or the utilization of shadow panels or semi-concealed fastener panels with fasteners painted to match the panels shall be required.
B.
Building Design and Construction Requirements for Residential Districts. All buildings hereafter constructed, expanded, remodeled or otherwise improved within these districts shall be designed in such a manner so that it provides a basic harmony with and not detract from the overall attractiveness of surrounding development and shall be constructed of the following materials:
1.
A minimum of 25 percent of the front elevation shall be comprised of masonry, natural stone or brick.
2.
A minimum of two windows shall be located on each side/elevation of a residence.
C.
Maintenance. The exterior walls and roofs of buildings shall be maintained in a clean, orderly and attractive condition, free of cracks, dents, punctures, breakage, and other forms of visible marring. Materials that become excessively faded, chalked, cracked, chipped, damaged or otherwise deteriorated shall be replaced, refinished, repaired or repainted in accordance with the reasonable determination and order of the Zoning Administrator within 60 days notice of such defect.
D.
Trademark Architecture. Trademark architecture shall not be permitted unless approved by Village staff.
E.
Procedures. Architectural design is subject to the site plan review process.
F.
Appeals. Unless otherwise provided herein appeals to the requirements contained in these standards shall be heard by the Planning and Zoning Commission.
(Ord. 2012-012, 3-13-2012)
A.
Definitions:
Streetscape. The streetscape refers to the facades of single-family dwellings on both sides of a street. The length of a streetscape shall be limited to no more than 20 lots per side of a street. When more than 20 lots per street side exist without an intervening cross street, the Village shall (through the Zoning Administrator) define the lots that constitute a separate streetscape. In making a determination, the Zoning Administrator shall consider the configuration of lots that shall be most influenced and effected by adjacent lots. When possible, physical demarcations (topography, road configuration or landscaping) shall be utilized in determining the appropriately-defined streetscapes. In general the front orientation of the residence will determine the applicable streetscape.
B.
Similar Elevations and/or Facades Prohibited on Adjacent Lots. No two single-family dwellings of similar front elevation and/or facade shall be constructed or located on adjacent lots or on lots opposite each other. Single-family dwellings of similar front elevation and/or facade shall be separated by at least two lots, regardless of the side of the street the dwelling is located. There shall not be the same single-family dwellings of similar front elevation and/or facade constituting more than 25 percent of the single-family dwellings in any streetscape.
C.
Identical Footprint Prohibited on Adjacent Lots. No two single-family dwellings with the identical footprint or mirrored footprint shall be constructed or located on adjacent lots or on lots opposite each other. Single-family dwellings with the identical footprint or mirrored footprint shall be separated by at least two lots, regardless of the side of the street the dwelling is located. There shall not be the same single-family dwellings with the identical footprint or mirrored footprint constituting more than 25 percent of the single-family dwellings in any streetscape.
D.
Criteria. The Zoning Administrator shall consider the following enumerated factors in determining whether front elevations or facades shall be deemed similar. Front elevations and facades shall be dissimilar when at least one of the delineated changes under each of the following categories is made:
1.
Rooflines. To be considered dissimilar, the rooflines of two adjacent single-family dwellings, as seen from the front of the dwelling, shall be changed in at least one of the following ways:
a.
Changing gable roofs to hip roofs.
b.
Changing hip roofs to gable roofs.
c.
Providing an intersecting gable roof on the main gable roof provided that the height of the intersecting roof is at least 35 percent of the height of the main roof.
d.
Providing an intersecting hip roof on the main hip roof provided that the height of the intersecting hip roof is at least 35 percent of the height of the main roof.
e.
Subject to review by the Zoning Administrator, a shed roof when used as a front porch roof for a minimum of 50 percent of the entire width of the house, excluding area of garage.
f.
Subject to review by the Zoning Administrator, a substantial difference in roofline shall exist if the front soffit is increased substantially and is combined with columns of at least six inches in width and other architectural features of a similar magnitude which reach the roofline of the highest story.
g.
Rotating gable roofs 90 degrees on the building.
h.
On a tri-level residence or other building type that has three independent major roof areas, the changing of two of the three rooflines shall be acceptable as a substantial change. Acknowledging certain design elements may prevent the changing of all three rooflines. It is desired that the roofs with the greatest impact on the streetscape be changed.
i.
The following changes to rooflines shall not be deemed sufficient to make adjacent structures dissimilar:
i.
Gable roof atop hip roof.
ii.
Hip roof atop gable roof.
iii.
Dormers above windows.
iv.
Change in soffit overhang or minor variations in eaves height.
v.
Skylight and cupola.
2.
Windows. To be considered dissimilar, the windows of two adjacent single-family dwellings shall be changed in at least one of the following ways:
a.
Changing from single windows to multiple window arrangement (ganged units).
b.
Changing from multiple window arrangement to single window.
c.
Changing the type of windows (e.g., casement to double-hung).
d.
Providing a bay or bow window in the area of the predominant window.
e.
Where because of its size, location or design, if one window is the predominant window on the front elevation or façade and if the size, location or type of that window is changed to render the dwelling dissimilar, then no other window need be changed.
f.
The addition or subtraction of muntin bars (dividing lights) shall not be deemed sufficient change to constitute a substantial change in windows.
3.
Adding, removing or altering of porches.
4.
Altering types of front-loaded or side-loaded garages.
E.
Construction Materials or Colors. To be considered dissimilar, the construction materials of two adjacent single-family dwellings shall be changed in at least one of the following ways provided that when materials are changed, the change occurs throughout the front facade or elevation for a minimum of one story in height:
1.
Changing the siding from horizontal to vertical.
2.
Changing the siding from vertical to horizontal.
3.
Changing to four inch exposure horizontal siding.
4.
Changing to eight inch exposure horizontal siding.
5.
Brick siding.
6.
Stone facing.
7.
Stucco board and trim.
8.
Hue of siding (red, blue, green, etc.).
(Ord. 2012-012, 3-13-2012)
A.
Access Standards.
1.
Village Approval Required. All proposed access drives for the property shall be depicted on the required site plan for development and approved by the Director of Public Works.
2.
Number of Access Points:
a.
Lots shall not have more than two access points on any street frontage.
b.
In no instance shall any lot be permitted more than one access point on any one street if its frontage on the street is less than 100 linear feet (as measured along the right-of-way line).
c.
On arterial streets and in certain areas experiencing congestion and/or safety problems, access to a lot may be required to be located on an adjacent property or another street frontage.
d.
For residential uses, two access points serving the same street frontage may be utilized only with the approved by the Public Works Director.
3.
Residential Uses. Residential uses shall not have access points from a nonresidential collector or arterial street unless that is the only available frontage.
4.
Nonresidential Uses. Nonresidential uses shall not have access from a residential street unless that is the only available frontage.
5.
Access Near Street Intersections. Access points shall be located ten feet from the furthest property line to an intersection of any two street rights-of-way.
6.
Distance Between Access Drives. The minimum distance between access drives serving the same property shall be 25 feet (edge to edge) as measured at the property line. A distance in excess of 25 feet may be required if (in the opinion of the Director of Public Works) traffic factors warrant a greater distance.
7.
Angle of Intersection with Public Right-of-Way. All access drives shall intersect with any public right-of-way at an angle of not less than 75 degrees and shall intersect at an angle of 90 degrees whenever possible.
8.
Distance from Property Line. The distance from an access drive to the property line of an adjacent property shall not be inconsistent with the zoning district standards as specified in Chapter 6.
9.
Width of Driveways. All access drives shall have a minimum width of ten feet for one and two family dwellings. For all other land uses access drives accommodating one way traffic shall have a minimum width of 12 feet and drives accommodating two way traffic shall have a minimum width of 24 feet. All access drives shall have a maximum width of 25 feet for all residential uses, and 35 feet for all non-residential uses (measured at the right-of-way line). Access drives may be flared between the right-of-way line and the roadway up to a maximum of five additional feet in either direction.
10.
Traffic Control. Traffic generated by any use shall be channelized and controlled in a manner which avoids congestion on public streets and other safety hazards. Traffic into and out of all off-street parking, loading and traffic circulation areas serving six or more parking spaces shall be forward moving, with no backing into streets or pedestrian ways. Traffic control devices shall be required as determined by the Director of Public Works.
11.
Paving of Access. All access approach areas located within a street right-of-way shall be paved to the satisfaction of the Director of Public Works with a hard, all-weather surface, and shall be maintained so as to prevent the transport of gravel, dirt, or other eroded material from the subject property into the right-of-way. This requirement must be fulfilled before building occupancy, unless granted a time-specific extension in writing by the Director of Public Works.
B.
Visibility Standards; Requirement. In order to provide a clear view of intersecting streets to motorists, there shall be a triangular area of clear vision formed by the two intersecting streets and a chord connecting the centerlines. The distance requirement for the vision triangle shall be 25from the right-of-way of all intersections. Generally, the following standards shall apply:
1.
No object or planting which obstructs sight lines over two and one-half (2.5) feet in height above the surface of the roadbed shall be allowed in a vision clearance triangle, except the following:
a.
Telephone, telegraph, and power transmission poles.
b.
Lines and portable equipment.
c.
Open-type fence (e.g., chain link or wrought iron fencing) not exceeding a height of four feet above the roadbeds and not closer that six inches to any public right-of-way.
d.
The growing of flowers and shrubbery shall not exceed three and one-half (3.5) feet above the road surface.
e.
Deciduous trees not planted closer than ten feet to intersection of the rights-of-way lines.
2.
No overhanging tree branches or foliage obstructing sight lines shall be allowed between two and one-half (2.5) feet and ten feet above the roadbed in the vision-clearance triangle.
3.
Enforcement of this subsection shall be by complaint to the Zoning Administrator.
C.
Off-Street Parking and Traffic Circulation Standards:
1.
Depiction on Required Site Plan. All parking and traffic circulation proposed for the subject property shall be depicted on the site plan. A garage stall, meeting the access requirements, below, shall be considered a parking space. Parking spaces for all vehicles shall be clearly indicated on the site plan.
2.
Use of Off-Street Parking Areas. The use of required off-street parking areas shall be limited to the parking of operable vehicles not for lease, rent, or sale. Within residential districts, required parking spaces shall only be used by operable cars and trucks.
3.
Traffic Circulation and Traffic Control. Site circulation shall be designed to provide for the safe and efficient movement of all traffic. Circulation shall be provided to meet the individual needs of the site and shall be depicted on the required site plan. Circulation patterns shall conform to the general rules of the road. All traffic control measures shall meet the requirements of the Manual of Uniform Traffic Control Devices (Illinois Revisions).
4.
Installation and Maintenance of Off-Street Parking and Traffic Circulation Areas. All off-street parking and traffic circulation areas shall be completed prior to building occupancy (unless a performance bond acceptable to the Village or equivalent for the installation of said improvements is deposited with the Village) and shall be maintained in a dust-free condition at all times. In no instance or manner shall any off-street parking or traffic circulation area be used as a storage area, except as provided for by Section 8-10-12.
5.
Off-Street Parking and Traffic Circulation Design Standards:
a.
Surfacing and Marking. All off-street parking and traffic circulation areas (including all residential driveways-except those within the A-1 District) shall be paved with a hard, all-weather surface, to the satisfaction of the Village Engineer or Director of Public Works.
b.
Curbing. All off-street parking areas designed to have head-in parking, including drive aisles and driveways, shall provide a four inch curb and gutter of adequate height and properly located to ensure that no part of any vehicle will project beyond the required setbacks of this title as approved by the Village Engineer or Director of Public Works.
c.
Access. Each required off-street parking space shall open directly upon an aisle or driveway that is wide enough and designed to provide a safe and efficient means of vehicular access to the parking space without directly backing or maneuvering a vehicle into a public right-of-way. All off-street parking and traffic circulation facilities shall be designed with an appropriate means of vehicular access to a street or alley, in a manner which least interferes with traffic movements. Parking spaces located behind an enclosed garage and located directly from a through aisle shall be a minimum of 30 feet deep.
d.
Signage. All signage related to off-street parking or traffic circulation shall comply with the requirements of Chapter 11.
e.
Handicapped Parking Spaces. Parking for the handicapped shall be provided as specified by state and federal regulations.
f.
Parking Space Design Standards. All off-street parking spaces shall comply with the minimum requirements of this chapter. The minimum required area of parking spaces shall be 180 square feet. All parking spaces shall have a minimum vertical clearance of seven feet.
g.
Parking Lot Design Standards. Horizontal widths for parking rows, aisles, and modules shall be provided at widths listed in Table 8-10-7a.
h.
Landscaping. Parking lot landscaping shall comply with the requirements of the paved area landscaping requirements in Section 8-10-2.
Table 8-10-7a: Parking Layout Dimensions
D.
Calculation of Minimum Required Parking Spaces:
1.
General Guidelines for Calculating Required Parking Spaces. The requirements of Table 8-10-7d shall be used to determine the minimum required number of off-street parking spaces to be provided. Requirements are based on the type of use, the capacity of the use, the gross floor area of the use, or the number of employees working during the largest work shift. In all cases, one reserved parking space shall be provided for each vehicle used by the operation during business hours.
2.
Joint and Off-Site Parking Facilities:
a.
Parking facilities which have been approved by the Zoning Administrator to provide required parking for one or more uses shall provide a total number of parking spaces which shall not be less than the sum total of the separate parking needs for each use during any peak hour parking period when said joint parking facility is utilized at the same time by all uses.
b.
Each parking space designed to serve as joint parking shall be located not farther than 500 feet from the use.
c.
The applicant(s) for joint parking facility shall demonstrate to the Zoning Administrator's satisfaction that no conflicts exist in the demand for parking during the operating hours of the two or more uses.
d.
A legally binding instrument detailing maintenance and liability responsibilities shall be executed by all parties to be served by the joint parking facility. This instrument shall be recorded with the Boone County Recorders Office.
3.
Central Business District Parking. In the Central Business (CB) District, the parking requirements of this chapter are waived, unless the Zoning Administrator notes otherwise.
4.
Locational Prohibitions for Off-Street Parking Areas:
a.
Off-street parking shall not be located on non-paved surfaces.
b.
No private parking shall occur on-street terraces, driveways, or any other areas located within a public right-of-way not explicitly designated by the Village Board.
5.
Minimum Permitted Throat Length. Table 8-10-7b shall be used to determine the minimum permitted throat length of access drives serving parking lots as measured from the right-of-way line along the centerline of the access drive:
Table 8-10-7b: Minimum Permitted Throat Length
E.
Off-Street Loading Standards:
1.
Applicability. Any use which has a gross floor area of 6,000 square feet or more and that requires deliveries or makes shipments shall provide off-street loading facilities in accordance with the regulations of this section.
2.
Location. All loading berths shall be located a minimum of 25 feet from the intersection of two street right-of-way lines. Loading berths shall not be located within any required front yard area. Access to the loading berth shall be located in conformance with Section 8-10-7A. All loading areas shall be located on the private lot and shall not be located to interfere with, any public right-of-way.
3.
Size of Loading Area. The required loading berth shall be designed in accordance with Table 8-10-7c. All loading berths shall have a minimum vertical clearance of 14 feet.
4.
Access to Loading Area. Each loading berth shall be located so as to facilitate access to a public street or alley and shall not interfere with other vehicular or pedestrian traffic and shall not interfere with the function of parking areas. In no instance shall loading areas rely on backing movements into public rights-of-way.
5.
Surfacing and Marking. Required loading areas shall be paved and maintained in a dust-free condition at all times. Surface shall be marked in a manner which clearly indicates required loading areas.
6.
Use of Required Loading Areas. The use of all loading areas shall be limited to the loading and unloading of vehicles. Loading areas shall not be used to provide parking spaces. No parking or storage shall be allowed in loading areas.
7.
Depiction on Site Plan. All required loading areas shall be depicted on the site plan.
8.
Calculation of Required Loading Spaces:
a.
Indoor Institutional Land Uses. One loading berth shall be required for each building having a gross floor area of 6,000 square feet to 29,999 square feet. Uses located in buildings having a gross floor area of 30,000 square feet or greater, two loading berths shall be required.
b.
Commercial (except Offices), Storage/Disposal, Transportation, and Industrial Land Uses. One loading berth shall be required for each building having a gross floor area of 6,000 square feet to 29,999 square feet; buildings having a gross floor area of 30,000 square feet or greater shall provide an additional loading berth for each 50,000 square feet of gross floor area over 29,999 square feet.
c.
Office Land Uses. One loading berth shall be required for each building having a gross floor area of 6,000 square feet to 99,999 square feet; buildings having a gross floor area of 100,000 square feet or greater shall provide an additional loading berth for each 100,000 square feet of gross floor area over 99,999 square feet.
Table 8-10-7c: Loading Standards
Table 8-10-7d: Parking Ratios
(Ord. 2012-012, 3-13-2012)
A.
Depiction on Required Site Plan. Where a development requires site plan review, all outdoor lighting fixtures shall be depicted and described on the site plan or on a separate lighting plan with the following information:
1.
A catalog page or cut sheet of the outdoor lighting fixtures(s) including the mounting method and light cut-off angles. All lighting fixtures shall be full cut-off fixtures.
2.
A photometric plan drawn to the same scale as the site plan and indicating all property lines, lighting fixtures, installation height in feet, a table depicting the average illumination level (in foot-candles), the minimum to maximum ratio, minimum foot-candle measurement, maximum foot-candle measurement and illumination levels at regular intervals around the site and at the property lines.
B.
Requirements:
1.
Maximum Luminaire Height. The maximum permitted luminaire height shall be 30 feet in all nonresidential zoning districts and 25 feet in all residential districts. The height of both the pole and base shall be considered in the measurement of luminaire height.
2.
Orientation of Fixture. In no instance shall an exterior lighting fixture be oriented so that the lighting element (or a transparent shield) is visible from a property located within a residential zoning district. The use of shielded luminaries shall be utilized to facilitate compliance with this requirement.
3.
Intensity of Illumination:
a.
In no instance shall the amount of illumination attributable to exterior lighting measured at the property line exceed zero (0.0) foot-candles above ambient lighting conditions on a cloudless night. Exterior lighting must be IESNA (Illuminating Engineering Society of North America) rated cut-off or full cut-off.
b.
The maximum average lighting in non-residential zoning districts shall be two and four-tenths (2.4) foot-candles.
c.
The maximum average lighting in residential zoning districts shall be nine-tenths (0.90) foot-candles.
d.
The following exceptions shall be permitted:
i.
Outdoor recreation facilities and assembly areas: Maximum average lighting is three and six-tenths (3.60) foot-candles.
ii.
Auto display lots and gas station pump islands: Maximum average lighting is three (3.0) foot-candles.
4.
Location. No exterior light fixture shall be located in any required bufferyard or within three feet of the property line.
5.
Flashing, Flickering and other Distracting Lighting. Flashing, flickering and/or other distracting exterior lighting is prohibited.
6.
Hours of Illumination. Within one hour after store closing, completion of the final work shift, or completion of specific activities associated with an institutional use, only building mounted security lighting and up to 25 percent of all other outdoor lighting fixtures may remain illuminated.
7.
Minimum Lighting Standards. All areas designated on the site plans for vehicular parking, loading, or circulation and used after sunset shall provide artificial illumination in such areas at a minimum intensity of two- tenths (0.2) foot-candles.
8.
Minimum to Maximum Ratio. Foot-candle measurements shall not be greater than a twenty-to-one (20:1) ratio as per the IESNA standards.
9.
Street Lighting. Street lighting shall conform to the standards of the State of Illinois for state and federal highways, Boone County for county highways, and the Village of Poplar Grove for other streets and highways located within the Village.
10.
Temporary Security Lighting. Temporary security lighting triggered by motion or noise shall be permitted and exempt from the above provisions. Sensors for lighting shall not be triggered by activity located off the property. Such lighting shall not remain on for more than 15 minutes beyond the triggering event.
11.
Special Events Lighting. Any temporary use utilizing exterior lighting that is not in compliance with the requirements of this section shall secure a temporary use permit from the Village Clerk's office.
12.
Nonconforming Lighting. All lighting fixtures existing prior to the effective date of this chapter shall be considered as legal conforming uses. Lighting fixtures shall be extinguished by 11:00 p.m. All replacement fixtures shall fully comply with the requirements of this section. Where nonconforming lighting is deemed to create a public nuisance by the Zoning Administrator, it shall not be subject to the protections of Section 8-10-8 and may be ordered to be modified or removed to conform to the standards of this section.
(Ord. 2012-012, 3-13-2012)
A.
Vibration Standards. The requirements of this section apply to all new uses and activities that create detectable vibrations. Exceptions to the standards are vibrations created during the construction of the principal use on the subject property.
1.
Depiction on Site Plan. Any activity or equipment that creates detectable vibrations outside the confines of a building shall be depicted on the site plan.
2.
Requirements. No activity or operation shall cause or create earth bone vibrations (vibrations transmitted through the ground) in excess of the displacement values given below.
3.
Method of Measurement. Measurements shall be made at or beyond the adjacent lot line or the nearest residence district line as described below. Vibration displacements shall be measured with an instrument capable of simultaneously measuring in three mutually perpendicular directions. The maximum permitted displacements shall be determined in each zoning district by the following formula:
D = K/f, where D = displacement in inches
K = a constant to be determined by reference to the tables below
f = the frequency of vibration transmitted through the ground, cycles per second
Table 8-10-9a: Vibration Performance Standards
B.
Noise Standards. The requirements of this section apply to all uses and activities that create detectable noise except the noise created during the construction of the principal use on the subject property, or by incidental traffic, parking, loading, maintenance or agricultural operations.
1.
Requirements. All noise shall be muffled so as not be objectionable due to intermittence, beat frequency or shrillness. The sound pressure level to be measured as described in subsection B.3. below, shall not exceed the following decibel levels in the designated octave bands within each zoning districts:
Table 8-10-9b: Maximum Permitted Noise Level in Zoning Districts
2.
Objectionable sounds of an intermittent nature that are not easily measured shall be controlled so as not to become a nuisance to adjacent uses.
3.
The sound levels shall be measured with a sound level meter and associated octave band filter as prescribed by the American Standards Association.
4.
Noises that were in effect as of the effective date of this title shall be considered legal nonconforming noises. The burden of proof to demonstrate that said noises were in effect prior to the effective date of this title shall be the responsibility of the noise producer.
(Ord. 2012-012, 3-13-2012)
A.
Applicability. The requirements of this section apply to all land uses and activities involving any one or more of the following:
1.
Any material for which the State of Illinois requires notification of a local fire department; or
2.
Any other uses, activities, or materials, which are subject to county, state, or federal hazardous, or related, materials regulations.
B.
Standards:
1.
All land uses involving such hazardous materials shall submit a written description of such materials and the operations involving such materials conducted on their property as part of the site plan submittal.
2.
A Groundwater Protection Plan Worksheet as provided by the Boone County Soil and Water Conservation District shall be completed.
(Ord. 2012-012, 3-13-2012)
A.
Purpose. This section regulates the placement of signal receiving antennas (including roof-mounted antennas which are greater than 15 feet and satellite dishes which are greater than 18 inches) and is adopted to:
1.
Provide uniform regulation of all signal receiving antenna devices;
2.
Secure placement of such antennas in an aesthetically sensitive manner while allowing users reasonable reception of signals;
3.
Protect the public from injury from antennas that are inadequately mounted, unduly susceptible to wind pressure, improperly installed and wired or are placed on structures insufficiently designed or constructed to safely support the antenna; and
4.
Provide for placement of such antennas in locations that preserve access to rear property areas by firefighting apparatus and emergency personnel.
B.
Definitions:
1.
For purposes of this section, a signal-receiving antenna is defined as any apparatus capable of receiving communications from a transmitter or a transmitter relay located in a planetary orbit. This definition includes all types of signal receiving antennas, including parabolic antennas, home earth stations, satellite television disks, UHF and VHF television antennas and AM, FM, ham and short-wave radio antennas, regardless of the method of mounting.
2.
Owner means the holder of record of an estate in possession of fee simple, or for life, in land or real property, or a vendee of record under a land contract for the sale of an estate in possession in fee simple or for life but does not include the vendor under a land contract. A tenant shall be considered the owner to the extent of his interest. The personal representative of at least one owner shall be considered an owner.
C.
Installation Standards. Signal receiving antennas installed in any zoning district within the Village shall comply with the following provisions:
1.
Setbacks:
a.
Any signal receiving antenna and its mounting post shall be located a minimum of ten feet from any property line.
b.
Subject to the provisions herein signal-receiving antennas shall only be located in the rear yard of any lot. If reasonable signal reception is not possible with a rear yard placement, the signal-receiving antenna shall be placed in the side yard of the lot. In the event that reasonable signal reception is not possible by locating the signal receiving antenna on the rear or side yard of the property the antenna may be placed in the front yard or on the roof of structures on the property. For corner lots, a side yard is only a yard that does not face a street.
c.
If side yard, front yard or roof mounting is requested, the Zoning Administrator shall determine where reasonable reception is possible based on evidence provided by the person seeking to erect or construct the antenna.
2.
Mounting. Signal receiving antennas attached to the wall or roof of any principal or accessory structure shall be permitted only if the structure is properly constructed to carry all imposed loading and complies with applicable state and local building code requirements. The Zoning Administrator may require engineering calculations.
3.
Diameter. The diameter of the signal receiving antenna shall not exceed 15 feet for commercial uses or three feet for residential uses (except for systems used to provide community antenna television services).
4.
Height:
a.
A ground-mounted signal receiving antenna including any platform or structure may not exceed 18 feet in height as measured from the ground to the highest point of the dish.
b.
A roof-mounted antenna may not exceed 15 feet in height above the surrounding roof line as measured from the lowest point of the existing roof line.
5.
Number. Not more than three antennas shall be allowed in any noncommercial, single-family residential or two-family residential zone.
6.
Wind Pressure. All signal receiving antennas shall be permanently mounted in accordance with the manufacturer's specifications for installation. All such installations shall meet a minimum wind load design velocity of 80 MPH.
7.
Temporary Placement. No portable or trailer-mounted signal-receiving antenna shall be allowed except for temporary installation for on-site testing and demonstration purposes for periods not exceeding five days. Such trial placement shall be in accordance with all provisions of this section. Failure to comply shall result in a citation being issued for violation of this section. Any person making such temporary placement shall first give written notice to the Zoning Administrator of the date when such placement shall begin and end.
8.
Advertising. No form of advertising or identification, sign or mural is allowed on the signal receiving antenna other than the customary manufacturer's identification plates.
9.
Interference with Broadcasting. Signal receiving antennas shall be filtered and/or shielded so as to prevent the emission or reflection of an electromagnetic radiation that would cause any harmful interference with the radio and/or television broadcasting or reception on adjacent properties. In the event that harmful interference is caused subsequent to its installation, the owner of the signal receiving antenna shall promptly take steps to eliminate the harmful interference in accordance with Federal Communications Commission regulations.
10.
Aesthetic Considerations. Signal receiving antennas shall be located and designed to reasonably reduce visual impact from surrounding properties at the street level.
D.
Enforcement. It shall be unlawful to construct, use, build or locate any signal receiving antenna in violation of any provisions of this section.
(Ord. 2012-012, 3-13-2012)
A.
Requirements for Exterior Storage of Recreational Vehicles in Residential Zoning Districts. No person shall park or store recreational vehicles on a lot in a residential district except within a fully enclosed structure or except as provided herein.
1.
For the purposes of this title, a recreational vehicle or equipment shall include boats, boats with trailers, motor homes, motor coaches, pickup campers, camping trailers, travel trailers, fifth-wheel trailers, large utility trailers, race cars and their trailers, canoes or kayaks and their trailers, tent campers, folding campers, utility trailers, carnival equipment and their trailers, and cases or boxes used to transport recreational vehicles or their equipment, and similar equipment and vehicles.
2.
Outside parking of recreational vehicles and equipment are subject to the following provisions:
a.
In the rear yard no more than one recreational vehicle may be parked or stored outside a fully enclosed structure. A recreational vehicle shall not be located closer than three feet to a side or rear lot line.
b.
Recreational vehicles shall not be stored between any adjoining right-of-way and any structure. Recreational vehicles shall only be stored upon a paved surface in compliance with this Code.
c.
The recreational vehicle shall be maintained and be in good condition and safe for effective performance for the function in which it was intended. The exterior of the vehicle shall be intact.
d.
Recreational vehicles shall be roadworthy. Vehicles that require a license shall be properly licensed.
e.
No recreational vehicles or equipment shall be parked or stored in any open space outside a building unless such equipment is wholly owned by the property owner, who shall be in residence at the property in question. If the property is rented, such storage shall be permitted to the tenant only provided that such equipment is owned by the tenant.
f.
All equipment shall be parked or stored as inconspicuously as possible on the property. The area around the equipment or vehicle must be kept weed free and free of accumulation of other storage material.
g.
At no time shall a recreational vehicle be used for permanent living, sleeping, or materials storage. No recreational vehicle shall be permanently connected to water, gas, electricity or sanitary sewer service.
B.
Requirements for Exterior Commercial Vehicle and Material Storage in Residential Zoning Districts. No person shall store materials on a lot in a residential district except within a fully enclosed structure or except as provided herein.
1.
For the purposes of this title, outdoor storage of materials shall include all materials and equipment not related to recreational vehicles or play equipment.
2.
The total area devoted to exterior material storage on each lot shall not exceed 100 square feet. Said storage may occur in multiple locations, as regulated below.
a.
No exterior material storage shall occur in the front or street yard.
b.
In the side or rear yard, exterior material storage shall not be located closer than three feet to a side or rear lot line. Such storage shall be located to minimize visibility from adjoining properties and the public street.
c.
No commercial vehicle exceeding a class B license plate shall be parked overnight in residentially zoned districts on the street, or in parking spaces or garages accessory to residential dwellings.
C.
Requirements for Exterior Commercial Vehicle and Equipment Storage in Office and Commercial Districts. No person shall park or store commercial vehicles on a lot in an office or commercial district except within a fully enclosed structure or except as provided herein.
1.
For the purposes of this title, a commercial vehicle or equipment shall include tractor trailers, semi-trucks, vehicles with commercial logos, trailers, and similar equipment, vehicles, and storage units.
2.
Outside parking of commercial vehicles and equipment are subject to the following provisions:
a.
The commercial vehicle shall be maintained and be in good condition and safe for effective performance for the function in which it was intended. The exterior of the vehicle shall be intact.
b.
Commercial vehicles shall be roadworthy. Vehicles that require a license shall be properly licensed.
3.
Truck (as defined in Section 8-2-3) parking and standing are prohibited in all non industrial zoning districts with the exception of vehicles actively engaged in loading and unloading.
D.
Requirements for Exterior Material Storage in Office and Commercial Districts. In all office and commercial zoning districts, all materials and equipment shall be stored within a completely enclosed building except for the following which shall not be located within any front yard or required street yard (except for vehicles in designated parking spaces) and shall be stored a minimum of five feet from any and all property lines: screened refuse containers; construction materials, landscape materials and related equipment connected within on-site construction; and off-street parking.
E.
Inoperative Motor Vehicles and Junk. Refer to the Village of Poplar Grove Municipal Code.
(Ord. 2012-012, 3-13-2012)
APPENDIX A. DETAILED CLASSIFICATION OF PLANT SPECIES
The following is a list of plant species that fit within the various plant categories used for the landscape requirements of this Code. Species not included on this list require approval by the Zoning Administrator and determination by the Zoning Administrator of the corresponding landscaping point values, if any.
* The Common Hackberry may be allowed within a lot's interior landscaping. However, the Common Hackberry shall not be located adjacent to parking areas, sidewalks or paths. The following sources were used in compiling the preceding lists of plant species:
Department of Natural Resources. Forest Trees of Wisconsin: How to Know Them. Madison, Wisconsin: Department of Natural Resources, 1987.
Hasselkus, E.R. A Guide to Selecting Landscape Plants for Wisconsin. Madison, Wisconsin: College of Agricultural and Life Sciences University of Wisconsin - Extension, Cooperative Extension Programs, 1982.
Hightshoe, Gary L. Native Trees, Shrubs, and Vines for Urban and Rural America: A Planting Design Manual for Environmental Designers. New York: Van Nostrand Reinhold, 1988.
Iowa State University. Landscape Plants for Iowa. Ames, Iowa: Iowa State University Cooperative Extension Service, May 1984.
- SITE DESIGN STANDARDS
The purpose of this chapter is to provide minimum landscaping, screening and buffering standards; to provide proper access, visibility, parking, lighting, building design and outdoor storage; to protect and improve the Village's appearance; and to mitigate the environmental and aesthetic impacts of new development.
(Ord. 2012-012, 3-13-2012)
A.
Applicability. Any use for which submittal of a site plan is required shall provide landscaping in accordance with the regulations of Chapter 10. (Exception to the landscaping requirements: single-family uses, agricultural land uses and additions to existing buildings with insufficient site area). When expanding a development, if additions or enlargements are 50 percent or more of the square footage of the existing uses, structures, or vehicular use areas, then the landscaping requirements shall apply to the entire site. If the additions or enlargements are less than 50 percent of the square footage of the existing uses, structures, or vehicular use areas, then only the building foundation and the paved area requirements shall apply to the expanded structure or vehicular use area.
B.
Landscape Plan Requirements. A landscape plan providing the following information shall be submitted with the site plan at the time of application for building permit and/or with a subdivision plat where applicable:
1.
North arrow, scale, date of preparation and revisions;
2.
Location of all proposed and existing buildings, structures and pavement;
3.
Location and dimensions of all property lines;
4.
Location of all existing or proposed ponds, lakes, watercourses, or drainage facilities;
5.
Location of the 100 year floodplain on the site, if applicable;
6.
Location, size and common name of any existing trees or shrubs to remain on-site;
7.
Location of all landscaping proposed for the site including trees, shrubs, ground cover, ornamental grasses or flower beds;
8.
Location of all existing or proposed signs, walls, fences, earthen berms (drawn at one foot contour interval), site furniture, lights, fountains and/or sculptures on the site;
9.
Location of all existing or proposed sidewalks, bike trails, pedestrian paths, etc. on the site;
10.
Plant list for all existing or proposed trees or shrubs on the site, including:
a.
Common name.
b.
Quantity.
c.
Installation size.
d.
Height/width at maturity.
e.
Point value per tree/shrub (as defined below).
11.
Location of all existing or proposed curb lines and curb cuts for streets, alleys, or parking lots;
12.
Schedule of total required points, as defined herein, classified by trees or shrubs, and total points provided; and
13.
Additional information as determined by the Zoning Administrator to be necessary for approval of the proposed plan.
C.
Calculating Landscaping and Bufferyard Requirements. In calculating the number of required landscaping points according to the provisions of this section, all area and distance calculations shall be rounded up to the nearest whole number of square feet or linear feet. Any partial plant derived from the required calculations (for example twenty-three and three-tenths (23.3) canopy trees) shall be rounded up to the nearest whole plant (24 canopy trees).
D.
Landscaping Points and Measurements. All landscaping requirements are stated in terms of the number of landscaping points required. The required number of landscaping points is dependent upon the type of land use, the zoning district, and the size of the development. A different number of points is awarded for each plant, depending upon its typical growth rate, its mature height, and whether it is a deciduous or an evergreen species. Shrubs may be replaced with ornamental grasses and perennials; however, such replacements shall not exceed 50 percent of the required number of shrubs. A minimum installation size is required for each of these plant categories. These requirements are as follows:
Table 8-10-2a: Landscaping Points and Minimum Installation Sizes
E.
Measurement for Landscaping Requirements. A minimum amount of landscaping points, based upon the zoning district, is required for:
1.
The linear feet of building foundations,
2.
The gross floor area of buildings on developed lots,
3.
The linear feet of street frontage, and
4.
The total combined area of paved areas.
The following diagram illustrates the measurement techniques used to determine these requirements:
Landscape Measurements
Landscaping Calculation Equations for this Example:
Paved Area = (P1 x P2) + (P3 x P4) + (P5 x P6) + (P7 x P8) + (P9 x P10)
Street Frontage = S1 + S2
Building Perimeter = F1 + F2 + F3 + F4 + F5 + F6 + F7 + F8
Building Floor Area = (B1 x B2) + (B3 x B4) + (B5 x B6)
F.
Building Foundations. This section requires that certain buildings or building additions constructed after the effective date of this chapter be accented by a minimum amount of landscaping placed near the building foundation.
Sample configuration best suited for building foundations
1.
Landscaping required by this section shall be placed so that at maturity, the plant's drip line is located within ten feet of the building foundation. Such landscaping shall not be located in those areas required for landscaping as street frontages, paved areas, protected green space areas, reforestation areas, or bufferyards.
2.
For each 100 feet of building foundation perimeter, the number of landscape points identified in Table 8-10-2b shall be provided on a prorated basis, and installed and permanently maintained per the requirements of this chapter.
3.
Climax trees and tall trees shall not be used to meet this requirement. The intent of this section is to require a visual break in the mass of buildings and to require a visual screen of a minimum of six feet in height for all exterior perimeter appurtenances (such as HVAC/utility boxes, standpipes, stormwater discharge pipes and other pipes).
4.
Where the officially approved site plan depicts a future building extension, the foundation landscaping requirement shall be calculated by measuring the length of the total perimeter. However, foundation plantings need only be installed based on the landscape points calculated from the portions of the building perimeter that will not be affected by building extension. If this results in point requirements, which are not met through the initial planting, then a performance bond for remaining plantings shall be deposited with the Building Department.
G.
Street Frontages. This section requires that street frontages on certain lots developed after the effective date of this chapter contain a minimum amount of landscaping in those areas which abut the right-of-way of a public street.
Sample configuration best suited for street frontages
1.
All landscaping used to meet this requirement shall be located within ten feet of the public right-of-way. In no instance shall such landscaping be located within a public right-of-way. Landscaping shall not impede vehicle or pedestrian visibility.
2.
For every 100 linear feet of street frontage where a developed lot abuts a public street right-of-way, the number of landscape points identified in Table 8-10-2b shall be provided on a prorated basis and installed and maintained per the requirements of this chapter.
3.
Shrubs shall not be used to meet this requirement. A minimum of 50 percent of all points shall be devoted to climax and/or tall trees and a minimum of 30 percent of all points shall be devoted to medium trees.
Sample configuration best suited for paved areas
H.
Paved Areas. This section requires that paved areas on certain lots developed after the effective date of this chapter contain a minimum amount of landscaping within, or within ten feet of, the paved area. The intent is to require a continuous visual screen of parking areas from public rights-of-way at a minimum height of 40 inches.
1.
A minimum of 360 square feet of landscaped area, located within ten feet of the paved area, is required for the placement of every 100 landscaping points. The landscaped area does not have to be provided in one contiguous area. Plants used to fulfill this requirement shall visually screen parking, loading and circulation areas from view from public streets.
2.
For every 20 off-street parking stalls or 10,000 square feet of pavement (whichever yields the greater landscaping requirement) located in a development, the number of landscape points identified in Table 8-10-2b shall be provided on a prorated basis and installed and maintained per the requirements of this chapter. A minimum of 30 percent of all points shall be devoted to climax and/or tall trees and a minimum of 40 percent of all points shall be devoted to shrubs. Landscaping within parking areas shall not obstruct visibility of motorists and pedestrians.
3.
Parking lot design shall employ interior landscaped islands with a minimum of 333 square feet (or two parking spaces) at all parking isle ends, and in addition shall provide a minimum of one interior landscaped island of a minimum of 333 square feet in each parking isle for every 20 cars in that aisle. Aisle-end islands shall count toward meeting this requirement if the row only consists of 20 spaces or less. Landscaped medians shall be used to break large parking areas into distinct pods, with a maximum of 100 spaces in any one pod.
I.
Developed Lots. This section requires that certain lots developed after the effective date of this chapter contain a minimum amount of landscaping.
Sample configuration best suited for developed lots
1.
Landscaping required by this section is most effective if located away from those areas required for landscaping as building foundations, street frontages, paved areas, protected green space areas, reforestation areas or bufferyards.
2.
The number of landscape points identified in Table 8-10-2b shall be provided on a prorated basis for every 1,000 square feet of gross floor area and installed and maintained per the requirements of this chapter.
3.
The intent of this section is to provide yard shade and to require a visual screen of a minimum of six feet in height for all detached exterior appurtenances (such as HVAC, utility boxes, standpipes, stormwater discharge pipes and other pipes.)
Table 8-10-2b: Landscaping Requirements for Regular Development
J.
Buffer Yards. When ever a side or rear yard in the R-5, MH, NB, GB, CB, LI or HI District abuts any RE, R-1, R-2 or R-3 District or any residential use within the Village limits or in any neighboring jurisdiction, a buffer yard shall be required. Buffer yards shall not be required in front yards.
1.
Depth of Yard. The buffer yard shall be ten percent of the lot width or depth, whichever is applicable. No buffer yard shall be less than ten feet in width. No buffer yard shall be required to be more than 50 feet in width. For property located on a corner lot where both the rear lot line and the interior side lot line abut property in the R-1, R-2, R-3 or R-5 district, the buffer yard depth for both required buffer yards may be determined by the lesser dimension of the lot width or lot depth.
2.
Dispute of Yard. Where there is a dispute over the location or size of the required buffer yard, the Planning and Zoning Commission shall make final determinations based on best available information.
3.
Total Points Required. The number of points that must be achieved through landscaping for buffer yards shall be based on one and one-half (1.5) required points of landscaping for each one foot of lot length along the buffer yard (one and one-half (1.5) points per foot). All landscaping required for buffer yards shall be planted within the required buffer yard, except as may be approved by the Zoning Administrator. Of the total required points, 50 percent of the total points must be achieved by using plants from the tree classification and 50 percent must be achieved by utilizing plants from the shrub classification. Of the total required points, 50 percent must be evergreen or broadleaf evergreen plantings.
4.
Berm. Where a semi-continuous berm measuring a minimum of three feet and a maximum of four feet in vertical height and not having a slope greater than three-to-one (3:1) on either side is provided, required buffer yard landscaping points may be reduced by 20 percent. Slopes may be increased above three-to-one (3:1) where retaining walls are used, subject to approval by the Zoning Administrator. No individual section of said berm may measure more than 40 feet in length. Berms should present an aesthetically-pleasing screen. The berm should be integrated into the overall landscaping plan, including landscaping on the berm where practical.
5.
Prohibited Use. All driveways, refuse containers, storage areas, aisle ways, vehicular maneuvering areas, mechanical equipment and structures are prohibited within the required buffer yard. A sidewalk or paved trail may be located within a buffer yard when used as a connection to other pedestrian and/or recreational corridors. A concrete pad for emergency exits from a building shall be permitted in the buffer yard provided that it is required by the Building Code.
6.
Activity Areas. All on-site activity areas located within 25 feet of a required buffer yard shall be screened by a fence, wall, berm, evergreen planting or combination thereof such that a substantially solid visual barrier of six feet in height is attained. Fences or walls, when provided, must be located between the activity area and the buffer yard. Activity areas shall include: refuse containers/dumpsters; storage; display of materials or merchandise; loading or unloading of passengers or goods; production assembly; processing or demolition of goods; and he parking of vehicles. Plantings provided to screen activity areas shall not count toward required landscaping.
K.
Classification of Plant Species. For the purpose of this chapter, plant materials are classified into 13 groupings: "climax tree," "tall deciduous tree," "medium deciduous tree," "low deciduous tree," "tall evergreen tree," "medium evergreen tree," "low evergreen tree," "tall deciduous shrub," "medium deciduous shrub," "low deciduous shrub," "medium evergreen shrub," "low evergreen shrub," and non-contributory plants. Species suitable for landscaping use and compatible with Boone County climate and soil factors are listed in Table 8-5-2c below. The Zoning Administrator shall review proposals for and the applicability of species not contained in this list and is authorized to approve appropriate similar species. (See Appendix A for a detailed listing of plant species and characteristics.)
Table 8-5-2c: Classification of Plants
L.
Requirements for Installation, Maintenance and Use of Landscaped and Bufferyard Areas:
1.
Installation. Any and all landscaping and bufferyard material required by the provisions of this chapter shall be installed on the property in accordance with the approved site plan, prior to the issuance of an occupancy permit for any building on the property, unless a performance bond or similar surety is deposited with the Village.
2.
Surety:
a.
If the subject property is to be occupied prior to the installation of all required landscaping and bufferyard material, the property owner shall sign an agreement stating the intent to install the landscaping with the required period. This agreement shall also contain a statement indicating that there are fines associated with not complying with this agreement.
b.
If a phase of development is approved per the requirements of this Code, required landscaping may be split into amounts which are applicable to each phase.
c.
The Zoning Administrator shall require a letter of credit, the establishment of an escrow account with the Village, or such other surety acceptable to the Village to ensure that the landscaping is installed in the event that it is not installed within the time established in the agreement authorized by subsection 1. above. The escrow agreement or other surety agreement shall be in a form reasonably acceptable to the Village and shall grant the Village the authority to draw upon the surety or escrow if the landscaping is not installed pursuant to the agreement referenced in subsection 1. The Village, or its designee, shall have the authority to enter upon the property subject to the surety or escrow and install the required landscaping without further permission from the owner. The Village shall retain the right to enforce this Title and the landscaping provision contained in this section by any legal or equitable means.
d.
Governmental units to which these bond and guarantee provisions apply may, in lieu of said contract or instrument of guarantee, file a resolution or letter from officers authorized to act in its behalf, agreeing to comply with the provisions of this chapter.
3.
Tree Preservation:
a.
All existing trees for which points are being requested must be identified by species and diameter (at breast height (DBH)) and shown on the landscape plans.
b.
Existing plant materials which meet the requirements of Section 8-10-2D. but do not qualify for bonus points as outlined in Section 8-10-2L.3.c. may be preserved on the subject property. Following the completion of development, said plants may be counted as contributing to the landscaping requirements.
c.
Trees intended to be preserved that are double the minimum planting size shall be worth a total of one and one-half (1.5) times the standard landscaping points as outlines in Appendix A.
d.
At final inspection, landscaping discovered to have been damaged may not be counted towards the required landscaping and the points shall be replaced with appropriate landscaping.
4.
All landscaping and bufferyard areas shall be seeded with lawn or native ground cover unless such vegetation is already fully established.
5.
The exact placement of required plants and structures shall be depicted on the required detailed landscaping plan shall be the decision of each property owner within the requirements of this section, except that the following requirements shall be met:
a.
Evergreen shrubs shall be planted in clusters in order to maximize their chance for survival.
b.
Where a combination of plant materials, and/or berming and/or fencing is used in a bufferyard, the fence and/or berm shall be located toward the interior of the subject property and the plant material shall be located toward the exterior of the subject property.
c.
A property owner may establish through a written agreement recorded with the Recorder of Deeds office that an adjacent property owner shall agree to provide a partial or full portion of the required bufferyard on an immediately adjacent portion of their land, thereby exempting the developer from providing all or a portion of the bufferyard on his property.
d.
In no manner shall landscaping or buffer yard materials be selected and/or located in a way that results in the creation of a safety or visibility hazard.
e.
The restrictions on types of plants listed in Sections 8-10-2F. through I. shall apply.
6.
Maintenance. The ongoing maintenance of all required landscaping and bufferyard materials shall be a requirement of this chapter and shall be the responsibility of the owner of the property on which said materials are required. This requirement shall run with the property and is binding upon all future property owners. Failure to comply with this requirement shall be considered a violation of this chapter and shall be subject to any and all applicable enforcement procedures and penalties including, but not limited to affirmative equitable relief.
7.
Utility Easements. Landscaping materials, fences and berms which are located within a duly recorded utility easement and/or a pedestrian easement shall not count toward meeting a landscaping requirement unless authorized by the Zoning Administrator; however, the width of such areas may be counted as part of a landscaping requirement.
(Ord. 2012-012, 3-13-2012)
The requirements of this section apply to all fencing, landscape walls and decorative posts equal to or exceeding 30 inches in height, for all land uses and activities. Fencing excluded from the requirements is: public utilities and local, state, or federal government uses which may use up to eight foot fences with four courses of barbed wire regardless of the applicable bulk regulations of the zoning district.
A.
Permit Required. No fence shall be constructed unless a permit is issued by the Building Official. Application for a permit shall be on forms prescribed by the Building Official and shall be accompanied by a description of the fence and materials to be used in construction of the fence, location of the fence or other evidence as to the location of the property line and the fence in relation to the property. The property PINs shall be exposed to verify proper placement of the fence.
B.
Standards.
1.
Materials:
a.
Residential Districts. Acceptable materials for constructing fencing, landscape walls, and decorative posts include wood, stone, brick, wrought iron, PVC/ABS and chain link, except that wire mesh fencing is not permitted within required front yard or street yard areas. All finished exteriors of fence shall be colored in a uniform manner with the exception of fluorescent colored paint which is prohibited.
b.
Nonresidential Districts. Acceptable materials for constructing fencing, landscape walls, and decorative posts include wood, stone, brick, wrought iron, PVC/ABS and chain link. Barbed wire fencing shall not be permitted.
c.
Temporary Fencing. Temporary fencing (including the use of wood or plastic snow fences for the purposes of limiting snow drifting between November 1 and April 1), protection of excavation and construction sites, and the protection of plants during grading and construction is permitted for up to 365 consecutive days.
d.
Snow Fences. Snow fences constructed of wood and wire, and/or plastic shall be permitted only as temporary fences.
2.
Location:
a.
Fences shall not be constructed within the front yard setback, except for in Section 8-10-3B.2.b.ii.
b.
On residential property the following exceptions may be permitted to the location of fences:
i.
Ornamental fences not exceeding six feet in length in any direction nor more than four feet in height may be erected at the corner of each lot.
ii.
Fences along the one side abutting a street of a corner lot may extend beyond the building setback line at a distance of 50 percent of the distance between the building setback line and the property line.
c.
Dog run enclosures shall be located not more than six feet from any property line.
d.
No fence, structure or planting shall be maintained in such a manner that is visibility obstructing of persons using the streets, sidewalks or driveways on or adjacent to such a yard. No such fence, structure or planting shall be located within the sight triangle, the sides of which are formed by the right-of-way lines of tow intersecting streets, or a street and a driveway, or a street and an alley. The length of the sides of said triangle shall be 25 feet along the street right-of-way that intersect and ten feet along the right-of-way and the driveway or an alley when a street intersects with an alley or a driveway.
3.
Maximum Height:
a.
No fence shall be constructed or erected in any residential, commercial or industrial district to a height exceeding six feet, except where otherwise specified in this Code.
b.
Fences permitted in the front yard per Section 8-10-3B.2.b.ii. shall not exceed four feet in height.
c.
Fences which enclose public schools, public property, public utilities, athletic fields, tennis courts or similar facilities, but not including parks within only playground equipment may be constructed or erected to a height not to exceed ten feet.
d.
Where business or industrial property is located adjacent to residentially zoned property and where screening is required by applicable codes or otherwise such screening shall be a total of six feet in height.
4.
Orientation. Any and all fences, landscape walls, or decorative posts shall be erected so as to locate visible supports and other structural components toward the subject property. All finished sides of a fence shall face out from the interior of the lot on which the fence is located and shall not include any signage that is not integral to the construction elements of the fence. All gates shall be installed so that they swing into the subject property and shall have a self closure and self-closing lock to hold the gate shut at all times when not in use.
5.
Maintenance. Any and all fences, landscape walls, or decorative posts shall be maintained in a structurally sound and attractive manner. Wood fencing shall be treated with a wood preservative and/or painted.
C.
Prohibited Fencing. It is unlawful to erect or maintain anywhere in the Village a fence equipped with or having barbed wire spikes or any similar device or any electric fence charged sufficiently to cause shock within seven feet of the ground level, except for fences installed pursuant to authority of the Village Board acting under Section 7-11-2 of the Building Code.
D.
Existing Fences; Damage or Destruction. Any fence in existence as of the effective date of this chapter shall be exempt from the provisions of this chapter with the exception of barbed wire fences, wire mesh fences, electrified fences and swimming pool enclosures. Upon the substantial damage or destruction or voluntarily removal of such an existing fence, any repaired reconstructed or new fence shall be subject to the provisions of this chapter.
(Ord. 2012-012, 3-13-2012)
A.
Purpose. The purpose of this section is to regulate screening to minimize the visibility of mechanical equipment, refuse containers, and any permitted outdoor storage.
B.
Applicability. The requirements of this section apply to all mechanical equipment whether building- or ground-mounted, refuse containers, and any permitted outdoor storage as approved through the site plan review process.
C.
Standards:
1.
Mechanical equipment, refuse containers, and any permitted outdoor storage shall be fully concealed from on-site and off-site ground level views with materials identical to those used on the building exterior; however, painted or stained gates or landscaping may be used as approved through the site plan review process.
2.
The use of varying roof heights and parapets shall be employed rather than fence-type screening to screen rooftop mechanicals.
3.
The use of landscaping or building wall extensions shall be employed rather than fence-type screening to screen ground mechanicals, refuse containers, and permitted outdoor storage areas.
(Ord. 2012-012, 3-13-2012)
A.
Building Design and Construction Requirements for Business Districts: All buildings hereafter constructed, expanded, remodeled or otherwise improved within these districts shall be designed in such a manner so that it provides a basic harmony with and not detract from the overall attractiveness of surrounding development and shall be constructed of the following materials:
1.
Brick.
2.
Concrete masonry. Units shall be those generally described by the National Concrete Masonry Association as "customized architectural concrete masonry units" or shall be broken faced brick type units with marble aggregate or split face or broke off concrete block. There shall be no exposed concrete block on the exterior of any building. Any concrete masonry units that have a gray cement color shall be coated.
3.
Concrete may be poured-in-place, tilt-up, or precast. Poured-in-place and tilt-up walls shall have a finish of stone, a texture or a coating. Textured finish, except in special cases, shall be coated. Precast units shall be coated. Coating shall be an approved cementatious or epoxy type with a ten year minimum life expectancy.
4.
Natural stone.
5.
Any other material approved by Village.
6.
Metal panels may be used only to accentuate or as a finish material within these districts. Any metal panel proposed for use within these districts as a finish material or to accentuate building shall be entirely coated with a colorfast, abrasion, and corrosion resistant, long life (minimum of 20 years) finish that is resistant to chemicals, withstands temperature extremes, and has a low permeability. Any material utilized to attach the metal panels to the building shall be concealed or the utilization of shadow panels or semi-concealed fastener panels with fasteners painted to match the panels shall be required.
B.
Building Design and Construction Requirements for Residential Districts. All buildings hereafter constructed, expanded, remodeled or otherwise improved within these districts shall be designed in such a manner so that it provides a basic harmony with and not detract from the overall attractiveness of surrounding development and shall be constructed of the following materials:
1.
A minimum of 25 percent of the front elevation shall be comprised of masonry, natural stone or brick.
2.
A minimum of two windows shall be located on each side/elevation of a residence.
C.
Maintenance. The exterior walls and roofs of buildings shall be maintained in a clean, orderly and attractive condition, free of cracks, dents, punctures, breakage, and other forms of visible marring. Materials that become excessively faded, chalked, cracked, chipped, damaged or otherwise deteriorated shall be replaced, refinished, repaired or repainted in accordance with the reasonable determination and order of the Zoning Administrator within 60 days notice of such defect.
D.
Trademark Architecture. Trademark architecture shall not be permitted unless approved by Village staff.
E.
Procedures. Architectural design is subject to the site plan review process.
F.
Appeals. Unless otherwise provided herein appeals to the requirements contained in these standards shall be heard by the Planning and Zoning Commission.
(Ord. 2012-012, 3-13-2012)
A.
Definitions:
Streetscape. The streetscape refers to the facades of single-family dwellings on both sides of a street. The length of a streetscape shall be limited to no more than 20 lots per side of a street. When more than 20 lots per street side exist without an intervening cross street, the Village shall (through the Zoning Administrator) define the lots that constitute a separate streetscape. In making a determination, the Zoning Administrator shall consider the configuration of lots that shall be most influenced and effected by adjacent lots. When possible, physical demarcations (topography, road configuration or landscaping) shall be utilized in determining the appropriately-defined streetscapes. In general the front orientation of the residence will determine the applicable streetscape.
B.
Similar Elevations and/or Facades Prohibited on Adjacent Lots. No two single-family dwellings of similar front elevation and/or facade shall be constructed or located on adjacent lots or on lots opposite each other. Single-family dwellings of similar front elevation and/or facade shall be separated by at least two lots, regardless of the side of the street the dwelling is located. There shall not be the same single-family dwellings of similar front elevation and/or facade constituting more than 25 percent of the single-family dwellings in any streetscape.
C.
Identical Footprint Prohibited on Adjacent Lots. No two single-family dwellings with the identical footprint or mirrored footprint shall be constructed or located on adjacent lots or on lots opposite each other. Single-family dwellings with the identical footprint or mirrored footprint shall be separated by at least two lots, regardless of the side of the street the dwelling is located. There shall not be the same single-family dwellings with the identical footprint or mirrored footprint constituting more than 25 percent of the single-family dwellings in any streetscape.
D.
Criteria. The Zoning Administrator shall consider the following enumerated factors in determining whether front elevations or facades shall be deemed similar. Front elevations and facades shall be dissimilar when at least one of the delineated changes under each of the following categories is made:
1.
Rooflines. To be considered dissimilar, the rooflines of two adjacent single-family dwellings, as seen from the front of the dwelling, shall be changed in at least one of the following ways:
a.
Changing gable roofs to hip roofs.
b.
Changing hip roofs to gable roofs.
c.
Providing an intersecting gable roof on the main gable roof provided that the height of the intersecting roof is at least 35 percent of the height of the main roof.
d.
Providing an intersecting hip roof on the main hip roof provided that the height of the intersecting hip roof is at least 35 percent of the height of the main roof.
e.
Subject to review by the Zoning Administrator, a shed roof when used as a front porch roof for a minimum of 50 percent of the entire width of the house, excluding area of garage.
f.
Subject to review by the Zoning Administrator, a substantial difference in roofline shall exist if the front soffit is increased substantially and is combined with columns of at least six inches in width and other architectural features of a similar magnitude which reach the roofline of the highest story.
g.
Rotating gable roofs 90 degrees on the building.
h.
On a tri-level residence or other building type that has three independent major roof areas, the changing of two of the three rooflines shall be acceptable as a substantial change. Acknowledging certain design elements may prevent the changing of all three rooflines. It is desired that the roofs with the greatest impact on the streetscape be changed.
i.
The following changes to rooflines shall not be deemed sufficient to make adjacent structures dissimilar:
i.
Gable roof atop hip roof.
ii.
Hip roof atop gable roof.
iii.
Dormers above windows.
iv.
Change in soffit overhang or minor variations in eaves height.
v.
Skylight and cupola.
2.
Windows. To be considered dissimilar, the windows of two adjacent single-family dwellings shall be changed in at least one of the following ways:
a.
Changing from single windows to multiple window arrangement (ganged units).
b.
Changing from multiple window arrangement to single window.
c.
Changing the type of windows (e.g., casement to double-hung).
d.
Providing a bay or bow window in the area of the predominant window.
e.
Where because of its size, location or design, if one window is the predominant window on the front elevation or façade and if the size, location or type of that window is changed to render the dwelling dissimilar, then no other window need be changed.
f.
The addition or subtraction of muntin bars (dividing lights) shall not be deemed sufficient change to constitute a substantial change in windows.
3.
Adding, removing or altering of porches.
4.
Altering types of front-loaded or side-loaded garages.
E.
Construction Materials or Colors. To be considered dissimilar, the construction materials of two adjacent single-family dwellings shall be changed in at least one of the following ways provided that when materials are changed, the change occurs throughout the front facade or elevation for a minimum of one story in height:
1.
Changing the siding from horizontal to vertical.
2.
Changing the siding from vertical to horizontal.
3.
Changing to four inch exposure horizontal siding.
4.
Changing to eight inch exposure horizontal siding.
5.
Brick siding.
6.
Stone facing.
7.
Stucco board and trim.
8.
Hue of siding (red, blue, green, etc.).
(Ord. 2012-012, 3-13-2012)
A.
Access Standards.
1.
Village Approval Required. All proposed access drives for the property shall be depicted on the required site plan for development and approved by the Director of Public Works.
2.
Number of Access Points:
a.
Lots shall not have more than two access points on any street frontage.
b.
In no instance shall any lot be permitted more than one access point on any one street if its frontage on the street is less than 100 linear feet (as measured along the right-of-way line).
c.
On arterial streets and in certain areas experiencing congestion and/or safety problems, access to a lot may be required to be located on an adjacent property or another street frontage.
d.
For residential uses, two access points serving the same street frontage may be utilized only with the approved by the Public Works Director.
3.
Residential Uses. Residential uses shall not have access points from a nonresidential collector or arterial street unless that is the only available frontage.
4.
Nonresidential Uses. Nonresidential uses shall not have access from a residential street unless that is the only available frontage.
5.
Access Near Street Intersections. Access points shall be located ten feet from the furthest property line to an intersection of any two street rights-of-way.
6.
Distance Between Access Drives. The minimum distance between access drives serving the same property shall be 25 feet (edge to edge) as measured at the property line. A distance in excess of 25 feet may be required if (in the opinion of the Director of Public Works) traffic factors warrant a greater distance.
7.
Angle of Intersection with Public Right-of-Way. All access drives shall intersect with any public right-of-way at an angle of not less than 75 degrees and shall intersect at an angle of 90 degrees whenever possible.
8.
Distance from Property Line. The distance from an access drive to the property line of an adjacent property shall not be inconsistent with the zoning district standards as specified in Chapter 6.
9.
Width of Driveways. All access drives shall have a minimum width of ten feet for one and two family dwellings. For all other land uses access drives accommodating one way traffic shall have a minimum width of 12 feet and drives accommodating two way traffic shall have a minimum width of 24 feet. All access drives shall have a maximum width of 25 feet for all residential uses, and 35 feet for all non-residential uses (measured at the right-of-way line). Access drives may be flared between the right-of-way line and the roadway up to a maximum of five additional feet in either direction.
10.
Traffic Control. Traffic generated by any use shall be channelized and controlled in a manner which avoids congestion on public streets and other safety hazards. Traffic into and out of all off-street parking, loading and traffic circulation areas serving six or more parking spaces shall be forward moving, with no backing into streets or pedestrian ways. Traffic control devices shall be required as determined by the Director of Public Works.
11.
Paving of Access. All access approach areas located within a street right-of-way shall be paved to the satisfaction of the Director of Public Works with a hard, all-weather surface, and shall be maintained so as to prevent the transport of gravel, dirt, or other eroded material from the subject property into the right-of-way. This requirement must be fulfilled before building occupancy, unless granted a time-specific extension in writing by the Director of Public Works.
B.
Visibility Standards; Requirement. In order to provide a clear view of intersecting streets to motorists, there shall be a triangular area of clear vision formed by the two intersecting streets and a chord connecting the centerlines. The distance requirement for the vision triangle shall be 25from the right-of-way of all intersections. Generally, the following standards shall apply:
1.
No object or planting which obstructs sight lines over two and one-half (2.5) feet in height above the surface of the roadbed shall be allowed in a vision clearance triangle, except the following:
a.
Telephone, telegraph, and power transmission poles.
b.
Lines and portable equipment.
c.
Open-type fence (e.g., chain link or wrought iron fencing) not exceeding a height of four feet above the roadbeds and not closer that six inches to any public right-of-way.
d.
The growing of flowers and shrubbery shall not exceed three and one-half (3.5) feet above the road surface.
e.
Deciduous trees not planted closer than ten feet to intersection of the rights-of-way lines.
2.
No overhanging tree branches or foliage obstructing sight lines shall be allowed between two and one-half (2.5) feet and ten feet above the roadbed in the vision-clearance triangle.
3.
Enforcement of this subsection shall be by complaint to the Zoning Administrator.
C.
Off-Street Parking and Traffic Circulation Standards:
1.
Depiction on Required Site Plan. All parking and traffic circulation proposed for the subject property shall be depicted on the site plan. A garage stall, meeting the access requirements, below, shall be considered a parking space. Parking spaces for all vehicles shall be clearly indicated on the site plan.
2.
Use of Off-Street Parking Areas. The use of required off-street parking areas shall be limited to the parking of operable vehicles not for lease, rent, or sale. Within residential districts, required parking spaces shall only be used by operable cars and trucks.
3.
Traffic Circulation and Traffic Control. Site circulation shall be designed to provide for the safe and efficient movement of all traffic. Circulation shall be provided to meet the individual needs of the site and shall be depicted on the required site plan. Circulation patterns shall conform to the general rules of the road. All traffic control measures shall meet the requirements of the Manual of Uniform Traffic Control Devices (Illinois Revisions).
4.
Installation and Maintenance of Off-Street Parking and Traffic Circulation Areas. All off-street parking and traffic circulation areas shall be completed prior to building occupancy (unless a performance bond acceptable to the Village or equivalent for the installation of said improvements is deposited with the Village) and shall be maintained in a dust-free condition at all times. In no instance or manner shall any off-street parking or traffic circulation area be used as a storage area, except as provided for by Section 8-10-12.
5.
Off-Street Parking and Traffic Circulation Design Standards:
a.
Surfacing and Marking. All off-street parking and traffic circulation areas (including all residential driveways-except those within the A-1 District) shall be paved with a hard, all-weather surface, to the satisfaction of the Village Engineer or Director of Public Works.
b.
Curbing. All off-street parking areas designed to have head-in parking, including drive aisles and driveways, shall provide a four inch curb and gutter of adequate height and properly located to ensure that no part of any vehicle will project beyond the required setbacks of this title as approved by the Village Engineer or Director of Public Works.
c.
Access. Each required off-street parking space shall open directly upon an aisle or driveway that is wide enough and designed to provide a safe and efficient means of vehicular access to the parking space without directly backing or maneuvering a vehicle into a public right-of-way. All off-street parking and traffic circulation facilities shall be designed with an appropriate means of vehicular access to a street or alley, in a manner which least interferes with traffic movements. Parking spaces located behind an enclosed garage and located directly from a through aisle shall be a minimum of 30 feet deep.
d.
Signage. All signage related to off-street parking or traffic circulation shall comply with the requirements of Chapter 11.
e.
Handicapped Parking Spaces. Parking for the handicapped shall be provided as specified by state and federal regulations.
f.
Parking Space Design Standards. All off-street parking spaces shall comply with the minimum requirements of this chapter. The minimum required area of parking spaces shall be 180 square feet. All parking spaces shall have a minimum vertical clearance of seven feet.
g.
Parking Lot Design Standards. Horizontal widths for parking rows, aisles, and modules shall be provided at widths listed in Table 8-10-7a.
h.
Landscaping. Parking lot landscaping shall comply with the requirements of the paved area landscaping requirements in Section 8-10-2.
Table 8-10-7a: Parking Layout Dimensions
D.
Calculation of Minimum Required Parking Spaces:
1.
General Guidelines for Calculating Required Parking Spaces. The requirements of Table 8-10-7d shall be used to determine the minimum required number of off-street parking spaces to be provided. Requirements are based on the type of use, the capacity of the use, the gross floor area of the use, or the number of employees working during the largest work shift. In all cases, one reserved parking space shall be provided for each vehicle used by the operation during business hours.
2.
Joint and Off-Site Parking Facilities:
a.
Parking facilities which have been approved by the Zoning Administrator to provide required parking for one or more uses shall provide a total number of parking spaces which shall not be less than the sum total of the separate parking needs for each use during any peak hour parking period when said joint parking facility is utilized at the same time by all uses.
b.
Each parking space designed to serve as joint parking shall be located not farther than 500 feet from the use.
c.
The applicant(s) for joint parking facility shall demonstrate to the Zoning Administrator's satisfaction that no conflicts exist in the demand for parking during the operating hours of the two or more uses.
d.
A legally binding instrument detailing maintenance and liability responsibilities shall be executed by all parties to be served by the joint parking facility. This instrument shall be recorded with the Boone County Recorders Office.
3.
Central Business District Parking. In the Central Business (CB) District, the parking requirements of this chapter are waived, unless the Zoning Administrator notes otherwise.
4.
Locational Prohibitions for Off-Street Parking Areas:
a.
Off-street parking shall not be located on non-paved surfaces.
b.
No private parking shall occur on-street terraces, driveways, or any other areas located within a public right-of-way not explicitly designated by the Village Board.
5.
Minimum Permitted Throat Length. Table 8-10-7b shall be used to determine the minimum permitted throat length of access drives serving parking lots as measured from the right-of-way line along the centerline of the access drive:
Table 8-10-7b: Minimum Permitted Throat Length
E.
Off-Street Loading Standards:
1.
Applicability. Any use which has a gross floor area of 6,000 square feet or more and that requires deliveries or makes shipments shall provide off-street loading facilities in accordance with the regulations of this section.
2.
Location. All loading berths shall be located a minimum of 25 feet from the intersection of two street right-of-way lines. Loading berths shall not be located within any required front yard area. Access to the loading berth shall be located in conformance with Section 8-10-7A. All loading areas shall be located on the private lot and shall not be located to interfere with, any public right-of-way.
3.
Size of Loading Area. The required loading berth shall be designed in accordance with Table 8-10-7c. All loading berths shall have a minimum vertical clearance of 14 feet.
4.
Access to Loading Area. Each loading berth shall be located so as to facilitate access to a public street or alley and shall not interfere with other vehicular or pedestrian traffic and shall not interfere with the function of parking areas. In no instance shall loading areas rely on backing movements into public rights-of-way.
5.
Surfacing and Marking. Required loading areas shall be paved and maintained in a dust-free condition at all times. Surface shall be marked in a manner which clearly indicates required loading areas.
6.
Use of Required Loading Areas. The use of all loading areas shall be limited to the loading and unloading of vehicles. Loading areas shall not be used to provide parking spaces. No parking or storage shall be allowed in loading areas.
7.
Depiction on Site Plan. All required loading areas shall be depicted on the site plan.
8.
Calculation of Required Loading Spaces:
a.
Indoor Institutional Land Uses. One loading berth shall be required for each building having a gross floor area of 6,000 square feet to 29,999 square feet. Uses located in buildings having a gross floor area of 30,000 square feet or greater, two loading berths shall be required.
b.
Commercial (except Offices), Storage/Disposal, Transportation, and Industrial Land Uses. One loading berth shall be required for each building having a gross floor area of 6,000 square feet to 29,999 square feet; buildings having a gross floor area of 30,000 square feet or greater shall provide an additional loading berth for each 50,000 square feet of gross floor area over 29,999 square feet.
c.
Office Land Uses. One loading berth shall be required for each building having a gross floor area of 6,000 square feet to 99,999 square feet; buildings having a gross floor area of 100,000 square feet or greater shall provide an additional loading berth for each 100,000 square feet of gross floor area over 99,999 square feet.
Table 8-10-7c: Loading Standards
Table 8-10-7d: Parking Ratios
(Ord. 2012-012, 3-13-2012)
A.
Depiction on Required Site Plan. Where a development requires site plan review, all outdoor lighting fixtures shall be depicted and described on the site plan or on a separate lighting plan with the following information:
1.
A catalog page or cut sheet of the outdoor lighting fixtures(s) including the mounting method and light cut-off angles. All lighting fixtures shall be full cut-off fixtures.
2.
A photometric plan drawn to the same scale as the site plan and indicating all property lines, lighting fixtures, installation height in feet, a table depicting the average illumination level (in foot-candles), the minimum to maximum ratio, minimum foot-candle measurement, maximum foot-candle measurement and illumination levels at regular intervals around the site and at the property lines.
B.
Requirements:
1.
Maximum Luminaire Height. The maximum permitted luminaire height shall be 30 feet in all nonresidential zoning districts and 25 feet in all residential districts. The height of both the pole and base shall be considered in the measurement of luminaire height.
2.
Orientation of Fixture. In no instance shall an exterior lighting fixture be oriented so that the lighting element (or a transparent shield) is visible from a property located within a residential zoning district. The use of shielded luminaries shall be utilized to facilitate compliance with this requirement.
3.
Intensity of Illumination:
a.
In no instance shall the amount of illumination attributable to exterior lighting measured at the property line exceed zero (0.0) foot-candles above ambient lighting conditions on a cloudless night. Exterior lighting must be IESNA (Illuminating Engineering Society of North America) rated cut-off or full cut-off.
b.
The maximum average lighting in non-residential zoning districts shall be two and four-tenths (2.4) foot-candles.
c.
The maximum average lighting in residential zoning districts shall be nine-tenths (0.90) foot-candles.
d.
The following exceptions shall be permitted:
i.
Outdoor recreation facilities and assembly areas: Maximum average lighting is three and six-tenths (3.60) foot-candles.
ii.
Auto display lots and gas station pump islands: Maximum average lighting is three (3.0) foot-candles.
4.
Location. No exterior light fixture shall be located in any required bufferyard or within three feet of the property line.
5.
Flashing, Flickering and other Distracting Lighting. Flashing, flickering and/or other distracting exterior lighting is prohibited.
6.
Hours of Illumination. Within one hour after store closing, completion of the final work shift, or completion of specific activities associated with an institutional use, only building mounted security lighting and up to 25 percent of all other outdoor lighting fixtures may remain illuminated.
7.
Minimum Lighting Standards. All areas designated on the site plans for vehicular parking, loading, or circulation and used after sunset shall provide artificial illumination in such areas at a minimum intensity of two- tenths (0.2) foot-candles.
8.
Minimum to Maximum Ratio. Foot-candle measurements shall not be greater than a twenty-to-one (20:1) ratio as per the IESNA standards.
9.
Street Lighting. Street lighting shall conform to the standards of the State of Illinois for state and federal highways, Boone County for county highways, and the Village of Poplar Grove for other streets and highways located within the Village.
10.
Temporary Security Lighting. Temporary security lighting triggered by motion or noise shall be permitted and exempt from the above provisions. Sensors for lighting shall not be triggered by activity located off the property. Such lighting shall not remain on for more than 15 minutes beyond the triggering event.
11.
Special Events Lighting. Any temporary use utilizing exterior lighting that is not in compliance with the requirements of this section shall secure a temporary use permit from the Village Clerk's office.
12.
Nonconforming Lighting. All lighting fixtures existing prior to the effective date of this chapter shall be considered as legal conforming uses. Lighting fixtures shall be extinguished by 11:00 p.m. All replacement fixtures shall fully comply with the requirements of this section. Where nonconforming lighting is deemed to create a public nuisance by the Zoning Administrator, it shall not be subject to the protections of Section 8-10-8 and may be ordered to be modified or removed to conform to the standards of this section.
(Ord. 2012-012, 3-13-2012)
A.
Vibration Standards. The requirements of this section apply to all new uses and activities that create detectable vibrations. Exceptions to the standards are vibrations created during the construction of the principal use on the subject property.
1.
Depiction on Site Plan. Any activity or equipment that creates detectable vibrations outside the confines of a building shall be depicted on the site plan.
2.
Requirements. No activity or operation shall cause or create earth bone vibrations (vibrations transmitted through the ground) in excess of the displacement values given below.
3.
Method of Measurement. Measurements shall be made at or beyond the adjacent lot line or the nearest residence district line as described below. Vibration displacements shall be measured with an instrument capable of simultaneously measuring in three mutually perpendicular directions. The maximum permitted displacements shall be determined in each zoning district by the following formula:
D = K/f, where D = displacement in inches
K = a constant to be determined by reference to the tables below
f = the frequency of vibration transmitted through the ground, cycles per second
Table 8-10-9a: Vibration Performance Standards
B.
Noise Standards. The requirements of this section apply to all uses and activities that create detectable noise except the noise created during the construction of the principal use on the subject property, or by incidental traffic, parking, loading, maintenance or agricultural operations.
1.
Requirements. All noise shall be muffled so as not be objectionable due to intermittence, beat frequency or shrillness. The sound pressure level to be measured as described in subsection B.3. below, shall not exceed the following decibel levels in the designated octave bands within each zoning districts:
Table 8-10-9b: Maximum Permitted Noise Level in Zoning Districts
2.
Objectionable sounds of an intermittent nature that are not easily measured shall be controlled so as not to become a nuisance to adjacent uses.
3.
The sound levels shall be measured with a sound level meter and associated octave band filter as prescribed by the American Standards Association.
4.
Noises that were in effect as of the effective date of this title shall be considered legal nonconforming noises. The burden of proof to demonstrate that said noises were in effect prior to the effective date of this title shall be the responsibility of the noise producer.
(Ord. 2012-012, 3-13-2012)
A.
Applicability. The requirements of this section apply to all land uses and activities involving any one or more of the following:
1.
Any material for which the State of Illinois requires notification of a local fire department; or
2.
Any other uses, activities, or materials, which are subject to county, state, or federal hazardous, or related, materials regulations.
B.
Standards:
1.
All land uses involving such hazardous materials shall submit a written description of such materials and the operations involving such materials conducted on their property as part of the site plan submittal.
2.
A Groundwater Protection Plan Worksheet as provided by the Boone County Soil and Water Conservation District shall be completed.
(Ord. 2012-012, 3-13-2012)
A.
Purpose. This section regulates the placement of signal receiving antennas (including roof-mounted antennas which are greater than 15 feet and satellite dishes which are greater than 18 inches) and is adopted to:
1.
Provide uniform regulation of all signal receiving antenna devices;
2.
Secure placement of such antennas in an aesthetically sensitive manner while allowing users reasonable reception of signals;
3.
Protect the public from injury from antennas that are inadequately mounted, unduly susceptible to wind pressure, improperly installed and wired or are placed on structures insufficiently designed or constructed to safely support the antenna; and
4.
Provide for placement of such antennas in locations that preserve access to rear property areas by firefighting apparatus and emergency personnel.
B.
Definitions:
1.
For purposes of this section, a signal-receiving antenna is defined as any apparatus capable of receiving communications from a transmitter or a transmitter relay located in a planetary orbit. This definition includes all types of signal receiving antennas, including parabolic antennas, home earth stations, satellite television disks, UHF and VHF television antennas and AM, FM, ham and short-wave radio antennas, regardless of the method of mounting.
2.
Owner means the holder of record of an estate in possession of fee simple, or for life, in land or real property, or a vendee of record under a land contract for the sale of an estate in possession in fee simple or for life but does not include the vendor under a land contract. A tenant shall be considered the owner to the extent of his interest. The personal representative of at least one owner shall be considered an owner.
C.
Installation Standards. Signal receiving antennas installed in any zoning district within the Village shall comply with the following provisions:
1.
Setbacks:
a.
Any signal receiving antenna and its mounting post shall be located a minimum of ten feet from any property line.
b.
Subject to the provisions herein signal-receiving antennas shall only be located in the rear yard of any lot. If reasonable signal reception is not possible with a rear yard placement, the signal-receiving antenna shall be placed in the side yard of the lot. In the event that reasonable signal reception is not possible by locating the signal receiving antenna on the rear or side yard of the property the antenna may be placed in the front yard or on the roof of structures on the property. For corner lots, a side yard is only a yard that does not face a street.
c.
If side yard, front yard or roof mounting is requested, the Zoning Administrator shall determine where reasonable reception is possible based on evidence provided by the person seeking to erect or construct the antenna.
2.
Mounting. Signal receiving antennas attached to the wall or roof of any principal or accessory structure shall be permitted only if the structure is properly constructed to carry all imposed loading and complies with applicable state and local building code requirements. The Zoning Administrator may require engineering calculations.
3.
Diameter. The diameter of the signal receiving antenna shall not exceed 15 feet for commercial uses or three feet for residential uses (except for systems used to provide community antenna television services).
4.
Height:
a.
A ground-mounted signal receiving antenna including any platform or structure may not exceed 18 feet in height as measured from the ground to the highest point of the dish.
b.
A roof-mounted antenna may not exceed 15 feet in height above the surrounding roof line as measured from the lowest point of the existing roof line.
5.
Number. Not more than three antennas shall be allowed in any noncommercial, single-family residential or two-family residential zone.
6.
Wind Pressure. All signal receiving antennas shall be permanently mounted in accordance with the manufacturer's specifications for installation. All such installations shall meet a minimum wind load design velocity of 80 MPH.
7.
Temporary Placement. No portable or trailer-mounted signal-receiving antenna shall be allowed except for temporary installation for on-site testing and demonstration purposes for periods not exceeding five days. Such trial placement shall be in accordance with all provisions of this section. Failure to comply shall result in a citation being issued for violation of this section. Any person making such temporary placement shall first give written notice to the Zoning Administrator of the date when such placement shall begin and end.
8.
Advertising. No form of advertising or identification, sign or mural is allowed on the signal receiving antenna other than the customary manufacturer's identification plates.
9.
Interference with Broadcasting. Signal receiving antennas shall be filtered and/or shielded so as to prevent the emission or reflection of an electromagnetic radiation that would cause any harmful interference with the radio and/or television broadcasting or reception on adjacent properties. In the event that harmful interference is caused subsequent to its installation, the owner of the signal receiving antenna shall promptly take steps to eliminate the harmful interference in accordance with Federal Communications Commission regulations.
10.
Aesthetic Considerations. Signal receiving antennas shall be located and designed to reasonably reduce visual impact from surrounding properties at the street level.
D.
Enforcement. It shall be unlawful to construct, use, build or locate any signal receiving antenna in violation of any provisions of this section.
(Ord. 2012-012, 3-13-2012)
A.
Requirements for Exterior Storage of Recreational Vehicles in Residential Zoning Districts. No person shall park or store recreational vehicles on a lot in a residential district except within a fully enclosed structure or except as provided herein.
1.
For the purposes of this title, a recreational vehicle or equipment shall include boats, boats with trailers, motor homes, motor coaches, pickup campers, camping trailers, travel trailers, fifth-wheel trailers, large utility trailers, race cars and their trailers, canoes or kayaks and their trailers, tent campers, folding campers, utility trailers, carnival equipment and their trailers, and cases or boxes used to transport recreational vehicles or their equipment, and similar equipment and vehicles.
2.
Outside parking of recreational vehicles and equipment are subject to the following provisions:
a.
In the rear yard no more than one recreational vehicle may be parked or stored outside a fully enclosed structure. A recreational vehicle shall not be located closer than three feet to a side or rear lot line.
b.
Recreational vehicles shall not be stored between any adjoining right-of-way and any structure. Recreational vehicles shall only be stored upon a paved surface in compliance with this Code.
c.
The recreational vehicle shall be maintained and be in good condition and safe for effective performance for the function in which it was intended. The exterior of the vehicle shall be intact.
d.
Recreational vehicles shall be roadworthy. Vehicles that require a license shall be properly licensed.
e.
No recreational vehicles or equipment shall be parked or stored in any open space outside a building unless such equipment is wholly owned by the property owner, who shall be in residence at the property in question. If the property is rented, such storage shall be permitted to the tenant only provided that such equipment is owned by the tenant.
f.
All equipment shall be parked or stored as inconspicuously as possible on the property. The area around the equipment or vehicle must be kept weed free and free of accumulation of other storage material.
g.
At no time shall a recreational vehicle be used for permanent living, sleeping, or materials storage. No recreational vehicle shall be permanently connected to water, gas, electricity or sanitary sewer service.
B.
Requirements for Exterior Commercial Vehicle and Material Storage in Residential Zoning Districts. No person shall store materials on a lot in a residential district except within a fully enclosed structure or except as provided herein.
1.
For the purposes of this title, outdoor storage of materials shall include all materials and equipment not related to recreational vehicles or play equipment.
2.
The total area devoted to exterior material storage on each lot shall not exceed 100 square feet. Said storage may occur in multiple locations, as regulated below.
a.
No exterior material storage shall occur in the front or street yard.
b.
In the side or rear yard, exterior material storage shall not be located closer than three feet to a side or rear lot line. Such storage shall be located to minimize visibility from adjoining properties and the public street.
c.
No commercial vehicle exceeding a class B license plate shall be parked overnight in residentially zoned districts on the street, or in parking spaces or garages accessory to residential dwellings.
C.
Requirements for Exterior Commercial Vehicle and Equipment Storage in Office and Commercial Districts. No person shall park or store commercial vehicles on a lot in an office or commercial district except within a fully enclosed structure or except as provided herein.
1.
For the purposes of this title, a commercial vehicle or equipment shall include tractor trailers, semi-trucks, vehicles with commercial logos, trailers, and similar equipment, vehicles, and storage units.
2.
Outside parking of commercial vehicles and equipment are subject to the following provisions:
a.
The commercial vehicle shall be maintained and be in good condition and safe for effective performance for the function in which it was intended. The exterior of the vehicle shall be intact.
b.
Commercial vehicles shall be roadworthy. Vehicles that require a license shall be properly licensed.
3.
Truck (as defined in Section 8-2-3) parking and standing are prohibited in all non industrial zoning districts with the exception of vehicles actively engaged in loading and unloading.
D.
Requirements for Exterior Material Storage in Office and Commercial Districts. In all office and commercial zoning districts, all materials and equipment shall be stored within a completely enclosed building except for the following which shall not be located within any front yard or required street yard (except for vehicles in designated parking spaces) and shall be stored a minimum of five feet from any and all property lines: screened refuse containers; construction materials, landscape materials and related equipment connected within on-site construction; and off-street parking.
E.
Inoperative Motor Vehicles and Junk. Refer to the Village of Poplar Grove Municipal Code.
(Ord. 2012-012, 3-13-2012)
APPENDIX A. DETAILED CLASSIFICATION OF PLANT SPECIES
The following is a list of plant species that fit within the various plant categories used for the landscape requirements of this Code. Species not included on this list require approval by the Zoning Administrator and determination by the Zoning Administrator of the corresponding landscaping point values, if any.
* The Common Hackberry may be allowed within a lot's interior landscaping. However, the Common Hackberry shall not be located adjacent to parking areas, sidewalks or paths. The following sources were used in compiling the preceding lists of plant species:
Department of Natural Resources. Forest Trees of Wisconsin: How to Know Them. Madison, Wisconsin: Department of Natural Resources, 1987.
Hasselkus, E.R. A Guide to Selecting Landscape Plants for Wisconsin. Madison, Wisconsin: College of Agricultural and Life Sciences University of Wisconsin - Extension, Cooperative Extension Programs, 1982.
Hightshoe, Gary L. Native Trees, Shrubs, and Vines for Urban and Rural America: A Planting Design Manual for Environmental Designers. New York: Van Nostrand Reinhold, 1988.
Iowa State University. Landscape Plants for Iowa. Ames, Iowa: Iowa State University Cooperative Extension Service, May 1984.