LAND USE REGULATIONS
The purpose of this article is to provide detailed descriptions and regulations for land uses established in article II of this chapter.
(Ord. No. 13-005, § 1, 3-28-2013)
Permitted land uses for each zoning district are listed in Article II and summarized in the Table of Land Uses in section 90-52, below. Even if a land use may be indicated as permitted by right or requiring a conditional use permit in a particular district, such a land use may not necessarily be permitted or permissible on a property unless it can be located or implemented on it in full compliance with all of the applicable standards and regulations of this article, or unless an appropriate variance has been granted.
(1)
Principal land uses permitted by right. Principal land uses listed as permitted by right are permitted per the land use requirements of this article; per the density, intensity, and bulk regulations of the specific zoning district in which they are located; per any additional requirements imposed by applicable overlay zoning districts; per all other applicable requirements of this chapter; and per any and all other applicable city, county, state, and federal regulations with jurisdiction over the property.
(2)
Principal land uses permitted as conditional uses. Principal land uses permitted only with a conditional use permit may be permitted subject to all requirements applicable to uses permitted by right as listed in (1), above, plus any additional requirements applicable to that particular land use imposed as part of the conditional use permit process established in section 90-472.
(3)
Accessory Land Uses. Permitted by right accessory land uses are allowed subject to the requirements and exemptions applicable to principal land uses permitted by right in (1), above. Accessory land uses allowed only with a conditional use permit are subject to all the requirements and exemptions applicable to principal land uses requiring a conditional use permit as listed in (2) above. Additional regulations applicable to accessory land uses include the following:
(a)
Accessory uses or structures shall conform to the applicable regulations of the district in which it is located, except as specifically otherwise provided.
(b)
No accessory structure shall be constructed on any lot prior to establishment of an allowable principal structure, unless otherwise stated in this chapter.
(c)
With the exception of drainage structures, accessory structures shall not be located between a principal building and a street frontage on the same lot, nor within any required front yard.
(d)
In no instance shall an accessory structure, cellar, basement, tent, or recreational trailer be used as a residence.
(e)
Placement restrictions for residential districts. An accessory use or structure in a residential district may be established subject to the following regulation:
1.
Accessory buildings. No accessory building shall occupy any portion of the required front yard, and no accessory building shall occupy more than 30 percent of the required rear yard. Any accessory building, use or structure shall conform to the applicable regulations of the district in which it is located, except that when an accessory building is located forward of the rear building line of the principal building it shall satisfy the same side yard requirements as the principal building. An accessory building shall not be nearer than ten feet to the principal structure unless the applicable building code regulations in regard to one hour fire-resistive construction are complied with. In no event can the accessory uses or structures be forward of the front line of the principal structure.
(f)
Use restrictions for residential district. Accessory uses or structures in residential districts shall not involve the conduct of any business, trade or industry except for home occupations as defined herein and shall not be occupied as a dwelling unit.
(g)
Reversed corner lots. When an accessory structure is located on the rear of a reversed corner lot, it shall not be located beyond the front yard required on the adjacent interior lot to the rear, nor nearer than three feet to the side line of the adjacent structure.
(h)
Lawn accessories. Walks, drives, paved terraces and purely decorative garden accessories such as pools, fountains, statuary flag poles, etc., shall be permitted in setback areas but not closer than three feet to an abutting property line other than a street line.
(i)
Retaining walls. Retaining walls may be permitted anywhere on the lot, provided, however, that no individual wall shall exceed six feet in height, and a terrace of at least three feet in width shall be provided between any series of such walls.
(4)
Temporary land uses. Temporary uses are those uses that have the potential to create undesirable impacts on nearby properties if allowed to develop under the general requirements of this chapter. Therefore, temporary uses are permitted on a temporary basis subject to all the requirements applicable to uses permitted by right as listed in (1) above.
(5)
Classification of unlisted uses. Any use not specifically listed as a permitted use or a conditional use in the districts established in article II or the Table of Land Uses shall be considered prohibited except as may be otherwise specifically approved hereinafter. In case of question as to the classification of an unlisted use, the question shall require an interpretation per section 90-479.
(Ord. No. 13-005, § 1, 3-28-2013)
(Ord. No. 13-005, § 1, 3-28-2013; Ord. No. 21-02, § III, 8-26-2021)
The land use categories employed by this chapter are defined in this section. Land uses which are not listed in this chapter are not necessarily excluded from locating within any given zoning district. Section 90-479 empowers the zoning administrator to make interpretations on matters regarding specific land use proposals which are not addressed by this chapter.
(Ord. No. 13-005, § 1, 3-28-2013)
(1)
Single family. A single family dwelling unit consists of a fully detached single family residence designed to be occupied by not more than one family. This land use type has no roof, wall, or floor in common with any other dwelling unit. The dwelling unit must be a site built structure built in compliance with the State of Wisconsin Uniform Dwelling Code (UDC), or may be a manufactured dwelling (modular home) as permitted by the UDC or a manufactured home as permitted by the HUD code. Regulations for single family uses include the following:
(a)
The minimum gross floor area shall be 700 square feet, exclusive of an attached garage, carport, or open deck.
(b)
The dwelling must be attached to a finished, permanent foundation, such as a poured concrete slab or basement meeting UDC requirements.
(c)
The dwelling unit roof shall have a pitch of at least three feet in rise for every 12 feet in run, except by conditional use permit.
(d)
This dwelling unit type may not be split into two or more dwelling units, except for in-family suites (section 90-62(5)) meeting the requirements of this article.
(e)
Refer to the Building Code for the State of Wisconsin for specific information related to the minimum dwelling unit size and related requirements.
(f)
Minimum required parking: Two spaces.
(g)
In the A-1 Agriculture district, this dwelling unit type is only permitted for 35-acre lots or larger; a conditional use permit is required for lots smaller than 35 acres but larger than or equal to 40,000 square feet.
(h)
This following figure is intended to provide a graphic depiction of the setback and dimensional requirements for single family land uses. Specific requirements for single family uses can be found in article II under the density, intensity, and bulk requirements for each residential zoning district.
Key to Figure
A
Minimum lot width (at building minimum setback line)
B
Street setback (lot line to principal building or attached garage)
C
Corner lot (street side) setback (lot line to principal building or attached garage)
D
Side setback (lot line to principal building or attached garage)
E
Rear setback (lot line to principal building or attached garage)
F
Accessory building side and rear setback (lot line to accessory building)
G
Minimum pavement setbacks (lot line to pavement excluding driveways entrances, etc.)
(2)
Two-family. This dwelling unit type consists of a single structure with two separate residences, each having a private individual access, and no shared internal access. Two-family units can be constructed as attached side-by-side units (duplex or zero lot line construction) each with a ground floor and roof, or as a two-story structure (two-flat) with one unit above the other. Where side-by-side, each dwelling unit may share the same lot (duplex) or be located on a separate lot (zero lot line construction) per the applicable standards that follow. Regulations for two-family uses include the following:
(a)
The structure must be in compliance with the State of Wisconsin Uniform Dwelling Code (UDC).
(b)
A building code required fire rated wall must separate the two dwelling units from the lowest level floor to flush against the underside of the roof.
(c)
Each dwelling unit shall have separate water laterals and sanitary sewer connections, separately metered.
(d)
Refer to the Building Code for the State of Wisconsin for specific information related to the minimum dwelling unit size and related requirements.
(e)
Minimum required parking: Two spaces per residence.
(f)
In the R-T traditional neighborhood residential district, this dwelling unit type is only permitted as a two-flat; a conditional use permit is required for duplexes and zero lot line construction.
(g)
Construction and maintenance standards for zero lot line construction:
a.
Each dwelling unit shall be located on an individual lot.
b.
No dwelling unit can have more than one zero lot line (i.e., prohibiting townhomes and rowhouses).
c.
Patios and decks for zero lot line construction shall have zero lot line side yard setbacks except when such side yard is opposite the lot line that includes the common wall. All other yards shall be as required for zoning districts in which two-family uses are permitted.
d.
A zero lot line maintenance agreement or declaration, in a form acceptable to the zoning administrator and be recorded with the Columbia County Register of Deeds, shall be entered into by the owners of each dwelling unit specifying maintenance standards for the common wall (fire rated), maintenance and replacement standards for the exterior surfaces of the building, extending from the common wall between the lots outward, to maintain a neat and harmonious appearance of the building. The maintenance agreement shall provide that it may not be terminated or amended without the prior approval of the city council.
e.
Driveways may be separate or joint. If joint, the standards for the joint driveway shall be part of the zero lot line maintenance agreement or declaration.
(h)
This following figure is intended to provide a graphic depiction of the setback and dimensional requirements for duplex land uses. Specific requirements for duplexes and other two-family dwellings can be found in article II under the density, intensity, and bulk requirements for each residential zoning district.
Key to Figure
A
Minimum lot width (at building minimum setback line)
B
Street setback (lot line to principal building or attached garage)
C
Corner lot (street side) setback (lot line to principal building or attached garage)
D
Side setback (lot line to principal building or attached garage)
E
Rear setback (lot line to principal building or attached garage)
F
Accessory building side and rear setback (lot line to accessory building)
G
Minimum pavement setbacks (lot line to pavement excluding driveways entrances, etc.)
(3)
Townhouse. A single family dwelling unit, with a private entrance, which is part of a structure whose dwelling units are attached horizontally in a linear arrangement, and having a totally exposed front and rear wall. Regulations for townhouse uses include the following:
(a)
A building code required fire rated wall separating living areas from the lowest level through the roof is required between each dwelling unit.
(b)
Individual sanitary sewer and public water laterals are required between each dwelling unit.
(c)
No more than eight and no less than three townhouse dwelling units may be attached per group.
(d)
Townhouses may not be split into additional residences.
(e)
Refer to the Building Code for the State of Wisconsin for specific information related to the minimum dwelling unit size and related requirements.
(f)
Minimum required parking: Two spaces per residence.
(g)
In the R-4 Small-scale multi-family residential district, this dwelling unit type is only permitted for three- or four-unit buildings; a conditional use permit is required for five- to eight-unit buildings.
(h)
In the R-5 Large-scale multi-family residential district, this dwelling unit type is only permitted for up to eight-unit buildings.
(i)
This following figure is intended to provide a graphic depiction of the setback and dimensional requirements for townhouse land uses. Specific requirements for townhouses can be found in article II under the density, intensity, and bulk requirements for each residential zoning district.
Key to Figure
A
Minimum lot width (at building minimum setback line)
B
Street setback (lot line to principal building or attached garage)
C
Corner lot (street side) setback (lot line to principal building or attached garage)
D
Side setback (lot line to principal building or attached garage)
E
Rear setback (lot line to principal building or attached garage)
F
Accessory building side and rear setback (lot line to accessory building)
G
Minimum pavement setbacks (lot line to pavement excluding driveways entrances, etc.)
(4)
Multiplex. This dwelling unit type consists of an attached, multi-family residence which has a private, individual exterior entrance. Regulations for multiplex uses include the following:
(a)
A building code required fire rated wall separating living areas from the lowest level through the roof is required between each dwelling unit.
(b)
No more than 24 dwelling units may be attached per group.
(c)
All multiplex units within a development shall be located a minimum of 30 feet from the boundary of the development.
(d)
Refer to the building code for the State of Wisconsin for specific information related to the minimum dwelling unit size and related requirements.
(e)
Minimum required parking: One space per residence.
(f)
In the R-4 Small-scale multi-family residential district, this dwelling unit type is only permitted for three- or four-unit buildings; a conditional use permit is required for five- to eight-unit buildings.
(g)
In the R-5 Large-scale multi-family residential district, this dwelling unit type is only permitted up to a 12-unit building; a conditional use permit is required for 13- to 24-unit buildings.
(h)
This following figure is intended to provide a graphic depiction of the setback and dimensional requirements for multiplex land uses. Specific requirements for multiplexes can be found in article II under the density, intensity, and bulk requirements for each residential zoning district.
Key to Figure
A
Minimum lot width (at building minimum setback line)
B
Street setback (lot line to principal building or attached garage)
C
Corner lot (street side) setback (lot line to principal building or attached garage)
D
Side setback (lot line to principal building or attached garage)
E
Rear setback (lot line to principal building or attached garage)
F
Accessory building side and rear setback (lot line to accessory building)
G
Minimum pavement setbacks (lot line to pavement excluding driveways entrances, etc.)
(5)
Apartment. This dwelling unit type consists of an attached, multi-family residence which takes access from a shared entrance or hallway. Regulations for apartment uses include the following:
(a)
A building code required fire rated wall separating living areas from the lowest level to the underside of the roof is required between each dwelling unit.
(b)
No less than three dwelling units may be located in a building.
(c)
As part of the conditional use requirement for group developments (section 90-64), any development comprised of one or more buildings which contain five or more dwelling units shall provide additional site design features such as: underground parking, architectural elements, landscaping, and/or on-site recreational facilities.
(d)
Refer to the Building Code for the State of Wisconsin for specific information related to the minimum dwelling unit size and related requirements.
(e)
Minimum required parking: One space per residence.
(f)
In the R-4 Small-scale multi-family residential district, this dwelling unit type is only permitted for 3- or 4-unit buildings; a conditional use permit is required for 5- to 8-unit buildings.
(g)
In the R-5 Large-scale multi-family residential district, this dwelling unit type is only permitted up to a 12-unit building; a conditional use permit is required for 13- to 24-unit buildings.
(h)
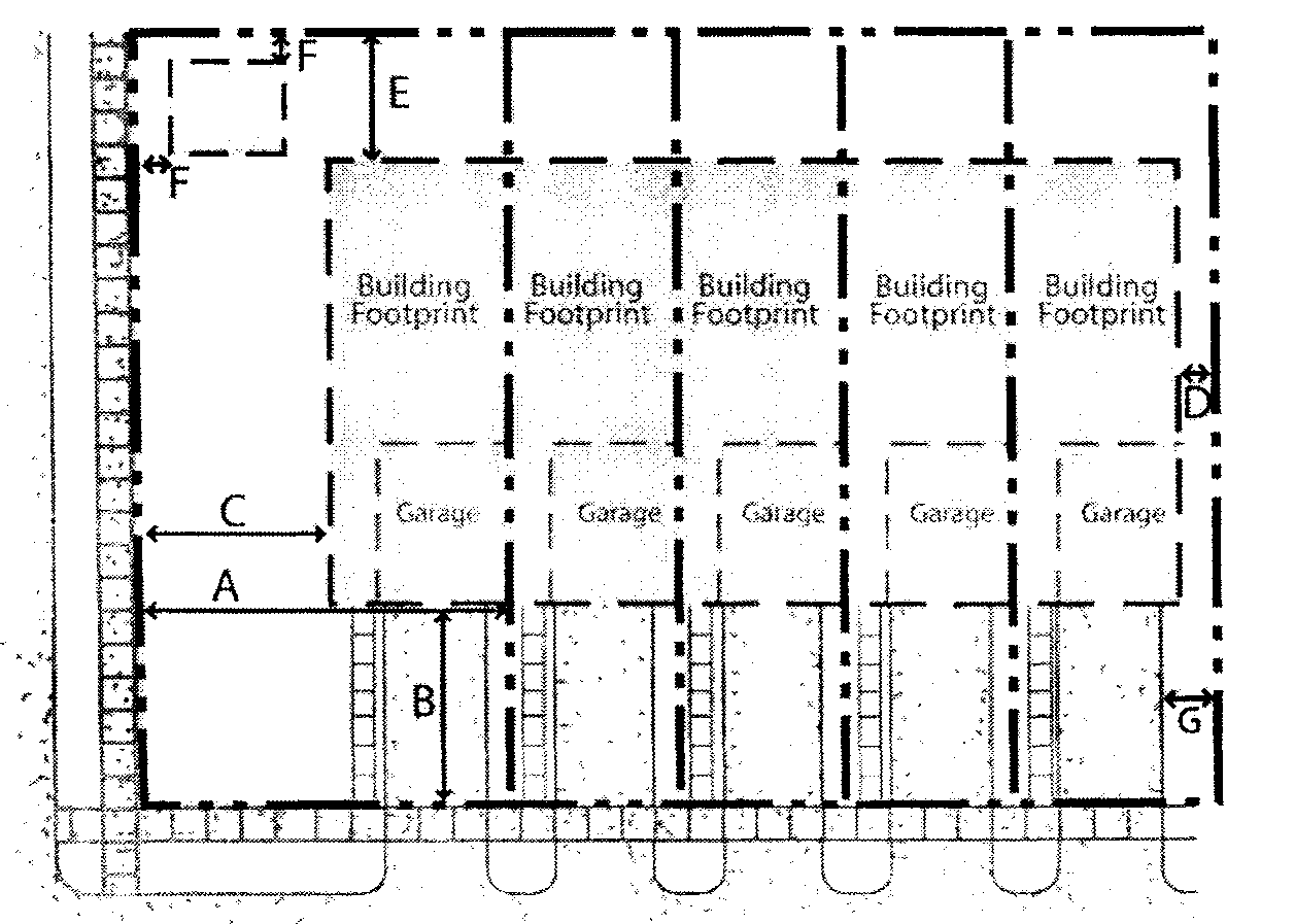
This following figure is intended to provide a graphic depiction of the setback and dimensional requirements for apartment land uses. Specific requirements for apartments can be found in Article II under the density, intensity, and bulk requirements for each residential zoning district.
Key to Figure
A
Minimum lot width (at building minimum setback line)
C
Minimum street frontage
D
Corner lot (street side) setback (lot line to principal building or attached garage)
F
Side setback (lot line to principal building or attached garage)
H
Rear setback (lot line to principal building or attached garage)
J
Accessory building side and rear setback (lot line to accessory building)
L
Minimum pavement setbacks (lot line to pavement excluding driveways entrances, etc.)
P
Minimum required parking
(6)
Mobile home. A dwelling unit type consisting of a fully detached, single family residence, which has not received a Federal Manufactured Housing Certificate. Regulations for mobile home uses include the following:
(a)
No mobile home may be split into two or more residences.
(b)
Within 60 days of placement on the site, the owner shall remove the axle and install foundation siding. Foundation siding means a fire and weather resistant, pre-finished material surrounding the entire perimeter of a home and completely enclosing a space between the exterior wall of such home and the ground. Foundation siding shall be properly vented, harmonious, and compatible with the house. Areas enclosed by such foundation siding shall be maintained free of rodents and fire hazards.
(c)
Storage under mobile homes is prohibited.
(d)
Mobile homes shall adhere to all additional regulations listed in section 90-32.
(e)
Minimum required parking: Two spaces per mobile home.
(Ord. No. 13-005, § 1, 3-28-2013; Ord. No. 21-02, § IV, 8-26-2021; Ord. No. 22-006, 6-9-2022)
(1)
Cultivation. Cultivation includes all operations primarily oriented to the on-site, outdoor raising of plants for commercial purposes. This land use includes trees which are raised as a crop to be replaced with more trees after harvesting, such as in nursery or Christmas tree operations. Regulations for cultivation uses include the following:
(a)
On buildable lots in non-agricultural zoning districts which are platted in final form and served by improved streets and utilities, cultivation is not permitted except as a conditional use or legal non-conforming use.
(b)
Once discontinued for a period of 12 months, cultivation uses may only be re-established in the A-1 agricultural district or with the granting of a conditional use permit and approval of a plan of operation. The plan of operation shall list any chemicals that are proposed to be used and describe the proposed time of operation any and all farming activities involving mechanized equipment, including the earlier and latest times during the day and likely months.
(c)
Minimum required parking: None.
(2)
On-site agricultural retail. This land use is associated with the sale of agricultural products grown exclusively on-site. The sale of products grown or otherwise produced off-site shall not be permitted within on-site agricultural retail operations and such activity constitutes retail sales as a commercial land use. Packaging and equipment used to store, display, package, or carry products for the convenience of the operation or its customers (such as egg cartons, baskets, containers, and bags) shall be produced off-site. Regulations for on-site agricultural retail uses include the following:
(a)
Structures or groups of structures used for on-site agricultural retail shall not exceed 500 square feet in floor area or 12 feet in height.
(b)
Signage shall be limited to one on-site sign which shall not exceed 30 square feet in area.
(c)
Such land use shall be served by no more than one driveway. Said driveway shall require a valid driveway permit.
(d)
Said structure and fencing shall be located a minimum of 300 feet from any residentially zoned property.
(e)
Once discontinued for a period of 12 months, on-site agricultural retail uses may only be reestablished in the A-1 Agricultural District or with the granting of a conditional use permit.
(f)
Minimum required parking: One space per employee on the largest work shift, four spaces for customers, and one space for every 200 square feet of product display area.
(3)
Husbandry. Operations primarily oriented to the on-site raising and/or use of animals at an intensity of one animal unit or less per acre, including apiaries and dairying operations. Regulations for husbandry uses include the following:
(a)
Any building housing animals shall be located a minimum of 300 feet from any residentially zoned property, and 100 feet from all other lot lines.
(b)
All outdoor animal containments (pastures, pens, and similar areas) shall be located a minimum of ten feet from any residentially zoned property.
(c)
Once discontinued for a period of 12 months, husbandry uses may only be re-established in the A-1 agricultural district or with the granting of a conditional use permit.
(d)
Minimum required parking: One space per employee on the largest work shift.
(4)
Intensive agriculture. Operations primarily, oriented to the on-site raising and/or use of animals at an intensity equal to or exceeding one animal unit per acre and/or agricultural activities requiring large investments in structures. Examples of such land uses include feed lots, hog farms, poultry operations, fish farms, and certain other operations meeting this criterion. Regulations for intensive agricultural uses include the following:
(a)
Such land uses shall not be located in or adjacent to an existing or platted residential subdivision.
(b)
Such land uses shall be completely surrounded by a landscaped buffer approved by the plan commission with a minimum intensity of 1.00.
(c)
All buildings, structures, outdoor storage areas, and outdoor animal containments (pastures, pens and similar areas) shall be located a minimum of 300 feet from all residentially zoned property and 100 feet from all other lot lines.
(d)
Such land uses shall be located in an area which is planned to remain commercially viable for agricultural land uses.
(e)
Once discontinued for a period of 12 months, intensive agricultural uses may only be reestablished in the A-1 agricultural district or with the granting of a conditional use permit except.
(f)
Minimum required parking: One space per employee on the largest work shift.
(5)
Agricultural service. Agricultural service land uses include all operations pertaining to the sale, handling, transport, packaging, storage, or disposal of agricultural equipment, products, by-products, or materials primarily used by agricultural operations. Examples of such land uses include agricultural implement sales, storage, or repair operations; feed and seed stores; agricultural chemical dealers and/or storage facilities; animal feed storage facilities; commercial dairies; food processing facilities; canning and other packaging facilities; and agricultural waste disposal facilities, except composting uses. Regulations for agricultural service uses include the following:
(a)
Such land uses shall not be located in or adjacent to an existing or platted residential subdivision.
(b)
All buildings, structures, outdoor storage areas, and outdoor animal containments (pastures, pens and similar areas) shall be located a minimum of 100 feet from all lot lines.
(c)
If within the A-1 agricultural district, shall be located in an area which is planned to remain commercially viable for agricultural land uses.
(d)
Once discontinued for a period of 12 months, intensive agricultural uses may only be re-established in the A-1 agricultural, M-1 industrial, M-2 heavy industrial, and M-3 interchange industrial districts with the granting of a conditional use permit.
(e)
Minimum required parking: N/A.
(6)
Commercial greenhouse. Retail businesses whose principal activity is the selling of flowers, shrubbery, vegetables, and trees grown on site and having outside storage and display. Regulations for commercial greenhouse uses include the following:
(a)
Such land uses shall not be located in an existing or platted residential subdivision.
(b)
All buildings, structures, and outdoor storage areas shall be located a minimum of 100 feet from all residentially zoned property.
(c)
Minimum required parking: One space per 300 square feet of gross floor area located within a permanent structure on the site plus one space per 1,000 square feet of gross floor area for all area within greenhouse structures.
(7)
Community garden. An area for cultivation and related activities divided into one or more plots to be cultivated by more than one operator or member. These areas may be on public or private lands. Regulations for community gardens include the following:
(a)
All activity areas and structures shall comply with the required setbacks and height regulations for principal structures within the zoning district.
(b)
Submittal of a site plan to the zoning administrator is required. The site plan submittal shall include the property owner, established sponsoring organization, and garden manager. The site plan shall also demonstrate consideration for and indicate the locations of structures, storage, access for deliveries and pickups, water availability, shaded rest area, and availability of public parking.
(c)
The following structures are permitted: tool sheds, shade pavilions, barns, rest-room facilities with composting toilets, and planting preparation houses, benches, bike racks, raised/accessible planting beds, compost bins, picnic tables, seasonal farm stands, fences, garden art, rain barrel systems, beehives, and children's play areas.
(d)
Signs shall be limited to identification, information, and directional signs, including sponsorship information where the sponsorship information is clearly secondary to other permitted information on any particular sign and shall not exceed a total aggregate area of 48 square feet.
(e)
Fences shall comply with the regulations in section 90-121, except that chicken wire, woven wire, and related garden fencing shall be permitted without restriction around and within cultivated areas.
(f)
Minimum required parking: N/A.
(8)
Market garden. An area for cultivation and related activities divided into one or more plots to be cultivated by more than one operator or member. These areas may be on public or private lands, with on-site sales of crops grown on-site. Regulations for market gardens include the following:
(a)
All activity areas and structures shall comply with the required setbacks and height regulations for principal structures within the zoning district.
(b)
Submittal of a site plan to the zoning administrator is required. The site plan submittal shall include the property owner, established sponsoring organization, and garden manager. The site plan shall also demonstrate consideration for and indicate the locations of structures, storage, access for deliveries and pickups, water availability, shaded rest area, and availability of public parking.
(c)
The following structures are permitted: tool sheds, shade pavilions, barns, rest-room facilities with composting toilets, and planting preparation houses, benches, bike racks, raised/accessible planting beds, compost bins, picnic tables, seasonal farm stands, fences, garden art, rain barrel systems, beehives, and children's play areas.
(d)
Seasonal farm stands shall be removed from the premises or stored inside a building on the premises during that time of the year when the garden is not open for public use.
(e)
Signs shall be limited to identification, information, and directional signs, including sponsorship information where the sponsorship information is clearly secondary to other permitted information on any particular sign and shall not exceed a total aggregate area of 48 square feet.
(f)
Fences shall comply with the regulations in section 90-121, except that chicken wire, woven wire, and related garden fencing shall be permitted without restriction around and within cultivated areas.
(g)
Minimum required parking: N/A.
(Ord. No. 13-005, § 1, 3-28-2013; Ord. No. 21-02, § IV, 8-26-2021)
(1)
Active outdoor public recreation. Outdoor recreational uses located on public property (including school district property) which involves active recreational activities. Such land uses include play courts (i.e. tennis and basketball courts), playfields (i.e. ball diamonds, football fields, and soccer fields), tot lots, outdoor swimming pools, swimming beach areas, fitness courses, public golf courses, and similar land uses. Regulations for active outdoor public recreation land uses include the following:
(a)
Facilities using night lighting and adjacent to residentially zoned property shall install a landscaped buffer with a minimum opacity of 0.60.
(b)
All structures and active recreational areas shall be located a minimum of 50 feet from any residentially zoned property.
(c)
Facilities which serve a regional or community-wide function shall provide off-street passenger loading area if the majority of the users will be children.
(d)
Minimum required parking: One space per four expected patrons at maximum capacity for any use requiring over five spaces.
(2)
Passive outdoor public recreation. Recreational land uses located on public property which involve passive recreational activities, such as arboretums, natural areas, wildlife areas, hiking trails, bike trails, cross country ski trails, horse trails, open grassed areas not associated with any particular active recreational land use (see (1) above), picnic areas, picnic shelters, gardens, fishing areas, and similar land uses. Regulations for a passive outdoor public recreation land uses include the following:
(a)
Minimum required parking: One space per four expected patrons at maximum capacity for any use requiring over five spaces.
(3)
Indoor institutional. All indoor public and not for profit recreational facilities (i.e. gyms, swimming pools, libraries, museums, and community centers), funeral homes, schools, churches, nonprofit clubs, nonprofit fraternal organizations, convention centers, hospitals, jails, prisons, and similar land uses. Regulations for indoor institutional land uses include the following:
(a)
An off-street passenger loading area shall be provided if the majority of the users will be children (as in the case of a school, church, library, or similar land use).
(b)
All structures shall be located a minimum of 50 feet from any residentially zoned property.
(c)
Minimum required parking: Generally, one space per three expected patrons at maximum capacity. However, see additional specific requirements below:
1.
Church: One space per five seats at the maximum capacity.
2.
Community or recreation center: One space per 300 square feet of gross floor area, or one space per four patrons to the maximum capacity, whichever is greater, plus one space per employee on the largest work shift.
3.
Funeral home: One space per three patron seats at the maximum capacity, plus one space per employee on the largest work shift.
4.
Hospital: One space per two patient beds, plus one space per staff doctor and one space per two employees on the largest work shift.
5.
Library or museum: One space per 300 square feet of gross floor area or one space per four seats to the maximum capacity, whichever is greater, plus one space per employee on the largest work shift.
6.
Elementary and junior high: One space per two employees.
7.
Senior high: One space per two employees, plus 30 percent of maximum capacity.
8.
College or trade school: One space per staff member on the largest work shift, plus one space per two students of the largest class attendance period.
(4)
Outdoor institutional. Privately held outdoor institutional uses, such as cemeteries, country clubs, golf courses, and similar land uses. Regulations for outdoor institutional land uses include the following:
(a)
An off-street passenger loading area shall be provided if a significant proportion of the users will be children.
(b)
All structures and actively used outdoor recreational areas shall be located a minimum of 50 feet from any residentially zoned property.
(c)
Facilities using night lighting and adjacent to residentially zoned property shall install a landscaped buffer with a minimum opacity of 0.60.
(d)
Minimum required parking: Generally, one space per three expected patrons at maximum capacity; otherwise, the following parking requirements apply:
1.
Cemetery: One space per employee, plus one space per three patrons to the maximum capacity of all indoor assembly areas.
2.
Golf course: Thirty-six spaces per nine holes, plus one space per employee on the largest work shift, plus 50 percent of spaces otherwise required for any accessory uses (e.g., bars, restaurants).
3.
Swimming pool: One space per 30 percent of capacity in persons.
4.
Tennis court: Three spaces per court.
(5)
Community living arrangement. Defined by statutes as places where five or more adults who are not related to the operator or administrator and who do not require care above intermediate level nursing care reside and receive care, treatment or services that are above the level of room and board but that include no more than three hours of nursing care per week per resident. Regulations for community living arrangements include the following:
(a)
Community living arrangement land uses include all facilities provided for in Wis. Stats. § 46.03(22), including child welfare agencies, group homes for children, foster homes, treatment foster homes, adult family homes, and community based residential facilities. Community living arrangements do not include in-home daycare centers (section 90-62(10), (11)) or group daycare centers (section 90-58(5)); nursing homes (section 90-57(6)); general hospitals, special hospitals, prisons, or jails (section 90-57(3)). Community living arrangement facilities are regulated depending upon their capacity as provided for in Wis. Stats. § 62.23(7)(i), provided any such regulations do not violate federal or state housing or anti-discrimination laws.
(b)
No community living arrangement shall be established within 2,500 feet of any other such facility regardless of its capacity unless planning commission and common council agree to a reduction in spacing.
(c)
The applicant shall demonstrate that the total capacity of all community living arrangements (of all capacities) in the city shall not exceed one percent of the city's population (unless specifically authorized by the common council following a public hearing).
(d)
Foster homes housing six or fewer children and licensed under Wis. Stats. § 48.62 shall not be subject to (a), above; and shall not be subject to, or count toward, the total arrived at in (b), above.
(e)
Minimum required parking: Three spaces.
(f)
In the R-T traditional neighborhood, R-1 single-family residential, and R-2 single-family residential districts, only community living arrangements with one to eight residents are permitted; a conditional use permit is required for community living arrangements with nine to 15 residents.
(g)
In the R-3 single-family and two-family residential, R-4 small-scale multi-family residential, and R-5 large-scale multi-family residential districts, only community living arrangements with one to 15 residents are permitted; a conditional use permit is required for community living arrangements with more than 15 residents.
(6)
Institutional residential. A form of residential development designed to accommodate institutional residential land uses, such as senior housing, retirement homes, assisted living facility, nursing homes, hospices, group homes, convents, monasteries, dormitories, convalescent homes, limited care facilities, rehabilitation centers, and similar land uses not considered to be community living arrangements under the provisions of Wis. Stats. § 62.23. Regulations for institutional residential uses include the following:
(a)
No individual lots are required although the development shall contain a minimum of 800 square feet of gross site area for each occupant of the development.
(b)
A minimum of 30 percent of the development's gross site area shall be held as permanently protected green space.
(c)
Project shall provide an off-street passenger loading area at a minimum of one location within the development.
(d)
Minimum required parking:
1.
Senior housing or retirement housing: One-half space per dwelling unit.
2.
Assisted living facility or limited care facility: One space per two dwelling units.
3.
Monastery, convent or dormitory: One space per six residents, plus one space per employee on the largest work shift, plus one space per five chapel seats if the public may attend.
4.
Nursing home or hospice: One space per four patient beds, plus one space per two employees on the largest work shift, plus one space per doctor.
(7)
Public services and utilities. All city, county, state, and federal facilities (except those otherwise treated in this section), emergency service facilities (i.e. fire departments and rescue operations), wastewater treatment plants, public and/or private utility substations, water towers, utility and public service related distribution facilities, and similar land uses. Regulations for public services and utilities include the following:
(a)
Outdoor storage areas shall be located a minimum of 50 feet from any residentially zoned property.
(b)
All outdoor storage areas adjoining a residentially zoned property shall install a landscaped buffer with a minimum opacity of 0.60.
(c)
All structures shall be located a minimum of 20 feet from any residentially zoned property.
(d)
The exterior of all buildings shall be compatible with the exteriors of surrounding buildings.
(e)
Minimum required parking: One space per employee on the largest work shift, plus one space per company vehicle normally stored or parked on the premises, plus one space per 500 square feet of gross square feet of office area.
(8)
Signal antenna.
(a)
This subsection regulating the placement of signal antennas is adopted to:
1.
Provide uniform regulation of all signal antenna devices;
2.
Secure placement of such antennas in an aesthetically sensitive manner while allowing users reasonable reception of signals;
3.
Protect the public from injury from antennas that are inadequately mounted, unduly susceptible to wind pressure, improperly installed and wired, or are placed on structures insufficiently designed or constructed to safely support the antenna; and
4.
Provide for placement of such antennas in locations that preserve access to rear property areas by firefighting apparatus and emergency personnel.
(b)
Building permit required. No owner shall, within the city, build, construct, use or place any type of signal tower until a permit shall have first been obtained from the zoning administrator.
(c)
Definitions. For purposes of this section, the following definitions shall apply:
1.
Signal antenna means any outdoor apparatus capable of receiving and/or sending communications. This definition includes all types of signal antennas, including, without limitation, parabolic antennas, home earth stations, satellite television disks, UHF and VHF television antennas, and AM, FM, ham and shortwave radio antennas, and cellular antenna rays regardless of the method of mounting.
2.
Owner means the holder of record of an estate in possession in fee simple, or for life, in land or real property, or a vendee of record under a land contract for the sale of an estate in possession in fee simple or for life but does not include the vendor under a land contract. A tenant in common or joint tenant shall be considered such owner to the extent of his interest. The personal representative of at least one owner shall be considered an owner.
(d)
Application. Application for all nonresidential signal antenna permit shall be made in writing to the department of public works. With such application, there shall be submitted a fee as set forth in the official city fee schedule on file in the city clerk's office and a sufficient set of mounting plans and specifications, including a general plot plan showing the location of the proposed signal antenna with respect to streets, lot lines and buildings. If such application meets all requirements of this section, the application shall be approved by the plan commission.
(e)
Installation standards. Signal antennas installed in any zoning district within the city shall comply with the following provisions:
1.
Number of units. Not more than one satellite earth station less than or equal to 24 inches in diameter may be allowed per individual recorded lot except additional stations may be permitted upon application for a variance in nonresidential zones.
2.
Location and setbacks. All earth stations shall comply with the setback requirements for primary structures as specified in the zoning district where the earth station is located.
3.
Size and height. The diameter of a residential signal antenna shall not exceed 24 inches and/or exceed height requirements in the applicable zoning district. All nonresidential signal antennas shall be of a size and height approved by the plan commission.
4.
Wind pressure. All signal antennas shall be permanently mounted in accordance with the manufacturer's specifications for installation. All such installations shall meet a minimum wind load design velocity of 90 miles per hour.
5.
Electrical installations. Electrical installations in connection with signal antennas, including grounding of the system, shall be in accordance with the National Electrical Safety Code, Wisconsin State Electrical Code (Wis. Admin. Code ch. SPS 316) and the instructions of the manufacturer. In cases of conflict, the stricter requirements shall govern. All cable used to conduct current or signals from the signal antenna to the receivers shall be installed underground unless installation site conditions preclude underground. If a signal antenna is to be used by two or more residential property owners, all interconnecting electrical connections, cables and conduits must also be buried. The location of all such underground lines, cables and conduits shall be shown on the application for a permit. All signal antennas shall be grounded against direct lightning strikes.
6.
Temporary placement. No portable or trailer-mounted signal antenna shall be allowed, except for temporary installation for on-site testing and demonstration purposes for periods not exceeding ten days in a calendar year. However, such trial placement shall be in accordance with all provisions of this section. Failure to comply shall result in a citation being issued for violation of this section. Any person making such temporary placement shall first give written notice to the department of public works of the date when such placement shall begin and end. There shall be no permit fee for temporary placement.
7.
Advertising. No form of advertising or identification, sign or mural is allowed on the signal antenna other than the customary manufacturer's identification plates.
8.
Interference with broadcasting. Signal antennas shall be filtered and/or shielded so as to prevent the emission or reflection of an electro-magnetic radiation that would cause any harmful interference with the radio and/or television broadcasting or reception on adjacent properties. In the event that harmful interference is caused subsequent to its installation, the owner of the signal receiving antenna shall promptly take steps to eliminate the harmful interference in accordance with Federal Communications Commission regulations.
9.
Compliance with federal regulations. The installation and use of every signal antenna shall be in conformity with the Federal Cable Communications Policy Act of 1984 (47 USC 521 et seq.) and regulations adopted there under.
10.
Aesthetic considerations. Signal antennas shall be located and designed to reasonably reduce visual impact from surrounding properties at street level. The color of any satellite dish shall be such that it blends into its surroundings and shall be approved by the department of public works as part of the application.
(f)
Variances. Requests for variances from the standards established by this section may be made to the board of appeals pursuant to section 90-64.
(g)
Enforcement.
1.
It shall be unlawful to construct, use, build or locate any signal antenna in violation of any provisions of this section. In the event of any violation, the common council or any property owner who would be specifically damaged by such violation may institute appropriate action or proceedings to enjoin a violation of this section.
2.
Any person, firm or corporation who fails to comply with the provisions of this section shall, upon conviction, be subject to the general penalty found in section 1-15.
(Ord. No. 13-005, § 1, 3-28-2013; Ord. No. 21-02, § IV, 8-26-2021; Ord. No. 21-04, § III, 7-22-2021)
(1)
Office. Indoor land uses where the primary function is the handling of information or administrative services. Such land uses do not typically provide services directly to customers on a walk-in or on-appointment basis. Regulations for offices include the following:
(a)
Minimum required parking: One space per 300 square feet of gross floor area.
(2)
Indoor sales or service. Display and sales or rental of merchandise or equipment, or non-personal or non-professional services, entirely within an enclosed building. This includes self-service facilities such as coin-operated laundromats. Display of products outside of an enclosed building is considered "incidental outdoor display" (see subsection 90-62(15)). A land use which contains both indoor sales and outdoor sales exceeding 15 percent of the total sales area of the building(s) on the property shall be considered as "outdoor display" (see subsection 90-58(10)). Regulations for indoor sales or service uses include the following:
(a)
Minimum required parking: One space per 300 square feet of gross floor area.
(3)
Personal or professional service. Indoor land uses where the primary function is the provision of services directly to an individual on a walk-in or on-appointment basis. Examples include but are not limited to insurance or financial services, realty offices, hospitals, medical offices and clinics, veterinary clinics, barber shops, beauty shops, and related land uses. Regulations for personal or professional service uses include the following:
(a)
Minimum required parking: One space per 300 square feet of gross floor area.
(4)
Indoor maintenance service. Land uses where maintenance services (including repair) are performed and contain all operations (except loading) entirely within an enclosed building. Because of outdoor vehicle storage requirements, vehicle repair and maintenance is considered a vehicle repair and maintenance land use. Regulations for indoor maintenance service uses include the following:
(a)
Minimum required parking: One space per 300 square feet of gross floor area.
(5)
Group daycare. Group daycare centers are land uses in which qualified persons provide childcare services, such as daycare centers and nursery schools. Such land uses may be operated on a for-profit or a not-for-profit basis. Such land uses may be operated in conjunction with another principal land use on the same environs, such as a church, school, business, or civic organization. In such instances, group daycare centers are not considered an accessory uses and therefore require review as a separate land use. Regulations for group daycare uses include the following:
(a)
Group daycare centers shall not be located within a residential building.
(b)
Facility shall provide a landscaped buffer with a minimum opacity of 0.50 along all property borders abutting residentially zoned property.
(c)
Property owner's permission is required as part of the conditional use permit application.
(d)
Minimum required parking: One space per five students plus one space for each employee on the largest work shift.
(6)
Artisan studio. A building or portion thereof used for the preparation, display, and sale of individually crafted artwork, jewelry, furniture, sculpture, pottery, leather craft, hand-woven articles, and related items, as either a principal use or accessory use. Regulations for artisan studios include the following:
(a)
Facility shall provide a landscaped buffer with a minimum opacity of 0.60 along all property borders abutting residentially zoned property.
(b)
Minimum required parking: One space per 300 square feet of gross floor area. Adequate on-site parking is required for all customer and employee vehicles.
(7)
Indoor commercial entertainment. Land uses which provide entertainment services entirely within an enclosed building. Such activities often have operating hours which extend significantly later than most other commercial land uses. Examples of such land uses include restaurants, taverns, theaters, health or fitness centers, all forms of training studios (dance, art, martial arts, etc.), bowling alleys, arcades, roller rinks, and pool halls. Regulations for indoor commercial entertainment uses include the following:
(a)
If located on the same side of the building as abutting residentially zoned property, no customer entrance of any kind shall be permitted within 150 feet, or as far as possible, of a residentially zoned property.
(b)
Facility shall provide a landscaped buffer with minimum opacity of 0.60 along all borders of the property abutting residentially zoned property.
(c)
Minimum required parking: One space per every three patron seats or lockers (whichever is greater); or one space per three persons at the maximum capacity of the establishment (whichever is greater).
(8)
Outdoor commercial entertainment. Land uses which provide entertainment services partially or wholly outside of an enclosed building. Such activities often have the potential to be associated with nuisances related to noise, lighting, dust, trash, and late operating hours. Examples of such land uses include outdoor commercial swimming pools, driving ranges, miniature golf facilities, amusement parks, drive-in theaters, go-cart tracks, and racetracks. Regulations for outdoor commercial entertainment uses include the following:
(a)
Activity areas shall not be located closer than 300 feet to a residentially zoned property.
(b)
Facility shall provide a landscaped buffer with minimum opacity of 0.80 along all borders of the property abutting residentially zoned property.
(c)
Activity areas (including drive-in movie screens) shall not be visible from any residentially zoned property.
(d)
Minimum required parking: One space for every three persons at the maximum capacity of the establishment.
(9)
Drive-through sales or service. Land uses which perform sales and/or services to persons in vehicles, or to vehicles which may or may not be occupied at the time of such activity (except vehicle repair and maintenance). Such land uses often have traffic volumes which exhibit their highest levels concurrent with peak traffic flows on adjacent roads. Examples include drive-in, drive-up, and drive-through facilities, vehicular fuel stations, and all forms of car washes. If performed in conjunction with a principal land use (e.g., a convenience store, restaurant, or bank), drive-through sales or service land uses shall be considered an accessory use. Regulations for drive-through sales or service uses include the following:
(a)
Clearly marked pedestrian crosswalks shall be provided for each walk-in customer access to the facility adjacent to the drive-through lane(s).
(b)
The drive-through facility shall be designed so as to not impede or impair vehicular and pedestrian traffic movement or exacerbate the potential for pedestrian/vehicular conflicts.
(c)
In no instance shall a drive-through facility be permitted to operate which endangers the public safety, even if such land use has been permitted under the provisions of this section.
(d)
The setback of any overhead canopy or similar structure shall be a minimum of ten feet from all street rights-of-way lines, a minimum of 20 feet from all residentially zoned property lines, and shall be a minimum of five feet from all other property lines. The total height of any overhead canopy or similar structure shall not exceed 20 feet per the measurement of roof height.
(e)
All vehicular areas of the facility shall provide a surface paved with concrete or bituminous material which is designed to meet the requirements of a minimum four-ton axle load.
(f)
Facility shall provide a landscaped buffer with a minimum opacity of 0.60 along all property borders abutting residentially zoned property.
(g)
Interior curbs shall be used to separate driving areas from exterior fixtures such as fuel pumps, vacuums, menu boards, canopy supports, and landscaped islands. Said curbs shall be a minimum of six inches high and be of a non-mountable design. No curb protecting an exterior fixture shall be located closer than 25 feet to all property lines.
(h)
Any text or logo larger than one square foot per side on an overhead canopy or other accessory structure shall be considered a freestanding sign subject to regulation under article IX of this chapter.
(i)
Minimum required parking: Refer to the parking requirements of the other land use activities on the site (i.e. indoor sales and service for a gas station/convenience store, or office for a bank). Each drive-up lane shall have a minimum stacking length of 100 feet behind the pass through window and 40 feet beyond the pass through window. This requirement may be adjusted by the Plan Commission through the conditional use process.
(10)
Outdoor display. Display and sales or rental of merchandise or equipment outside of an enclosed building. Examples include manufactured and mobile housing sales, monument sales, outdoor garden center, and outdoor recreation equipment sales. Such land uses do not include vehicles sales (see subsection 90-58(17)) the storage or display of inoperative vehicles or equipment, or other materials typically associated with a junkyard or salvage yard (see subsection 90-59(4)). If a land use displays for sale or rent only a limited amount of product outside of an enclosed building, such use may instead be considered incidental to indoor sales under subsection 90-62(13). Regulations for outdoor display uses include the following:
(a)
The area of outdoor sales shall be calculated as the area which would be enclosed by a required physical separation installed and continually maintained in the most efficient manner which completely encloses all materials displayed outdoors.
(b)
The display of items shall not be permitted in required landscaped areas, bufferyards, or setback areas for the principal structure.
(c)
In no event shall the display of items reduce or inhibit the use or number of parking stalls provided on the property below the requirement established by (i), below. If the number of provided parking stalls on the property is already less than the requirement, such display area shall not further reduce the number of parking stalls already present.
(d)
Display areas shall be separated from any circulation area by a minimum of ten feet. This separation shall be clearly delimited by a physical separation such as a greenway, curb, fence, line of planters, or by a clearly marked paved area.
(e)
Signs, screening, enclosures, landscaping, or materials being displayed shall not interfere in any manner with either on-site or off-site traffic visibility, including potential traffic/traffic and traffic/pedestrian conflicts.
(f)
Outdoor display shall be permitted during the entire calendar year, however, if goods are removed from the display area all support fixtures used to display the goods shall be removed within ten calendar days of the goods' removal.
(g)
Inoperative vehicles or equipment, or other items typically stored or displayed in a junkyard or salvage yard, shall not be displayed for this land use.
(h)
Facility shall provide a landscaped buffer with a minimum opacity of 0.60 along all borders of the display area abutting residentially zoned property.
(i)
Minimum required parking: One space per 300 square feet of gross floor area.
(11)
Outdoor maintenance service. Land uses where maintenance services, including repair, are performed and have all or any portion of their operations located outside of an enclosed building. Regulations for outdoor maintenance service uses include the following:
(a)
All outdoor activity areas shall be completely enclosed by a minimum six feet high fence. Such enclosure shall be located a minimum of 50 feet from any residentially zoned property
(b)
Facility shall provide a landscaped buffer with a minimum opacity of 0.60 along all borders of the display area abutting residentially zoned property.
(c)
Minimum required parking: One space per 300 square feet of gross floor area, or one space per each employee on the largest shift, whichever is less.
(12)
Tourist rooming houses (TRH). Places of lodging, other than commercial indoor lodging, boarding houses, or bed and breakfast establishments, in which sleeping accommodations are offered for pay to tourists or transients for short-term stays. Regulations for tourist rooming houses include the following:
(a)
Definitions:
(1)
Tourist or transient: A person who travels to a location away from his or her permanent address for a short period of time, not to exceed 30 days for vacation, pleasure, recreation, culture, business or employment
(2)
Short-term stay: A period of 30 days or less.
(3)
Operator: A person who is the owner or lessee of property being used as a TRH and who is conducting the TRH business, among other things, interacting digitally and in person with guests and is identified in the TRH listing and advertisements as the TRH "host."
(b)
Zoning and occupancy permit: All tourist rooming house operators must obtain a zoning and occupancy permit from the City of Portage.
(c)
Notice filing: All tourist rooming house operators must provide an annual notice filing with the Portage City Clerk, unless a TRH license has been obtained in accordance with (d)(2) below.
(d)
Licenses: An operator must hold the following non-expired licenses if the tourist rooming house is rented for more than ten days in any 365-day period:
(1)
A license from the Wisconsin Department of Agriculture, Trade and Consumer Protection (DATCP) for a tourist rooming house.
(2)
A license from the City of Portage to operate a tourist rooming house.
(e)
Maximum days of operation per year: Tourist rooming houses may only be rented for a total of 180 days or less within any consecutive 365-day period.
(f)
Minimum rental period: Tourist rooming houses must be rented to tourist or transients for a minimum of two days.
(g)
The sale of alcoholic beverages of any kind is prohibited on the premises.
(h)
Minimum required parking: with the exception tourist rooming houses located in the B-2 Downtown District, all tourist rooming houses must have at least one off-street parking space for every two guests.
(i)
Each operator shall keep a list of names of all persons staying at the tourist rooming house. This list shall be kept on file for a period of one year. Such list shall be available for inspection by city officials at any time.
(13)
Bed and breakfast. Places of lodging that provide rooms for rent, are the owner's personal residence, and are occupied by the owner at the time of rental. Regulations for bed and breakfast uses include the following:
(a)
Zoning and occupancy permit: All bed and breakfast establishments must obtain a zoning and occupancy permit from the City of Portage.
(b)
Licenses: Owner must hold the following non-expired licenses:
(1)
A license from the Wisconsin Department of Agriculture, Trade and Consumer Protection (DATCP) for a bed and breakfast.
(2)
A license from the City of Portage to operate a bed and breakfast.
(c)
If alcoholic beverages of any kind are to be served on the premises, the owner of the establishment shall first obtain the appropriate license in accordance with the city and state regulations.
(d)
One sign, with a maximum area of 20 square feet, shall be permitted on the property.
(e)
Facility shall provide a landscaped buffer with a minimum opacity of 0.60 along all property boarder abutting residentially zoned property.
(f)
No premises shall be utilized for a bed and breakfast operation unless there are at least two exits to the outdoors from such premises.
(g)
Only the meal of breakfast shall be served to overnight guests. Breakfast may be served anytime between 6:00 a.m. and 12:00 p.m.
(h)
Maximum stay: The maximum stay for any occupants of a bed and breakfast operation shall be 14 days.
(i)
Minimum required parking: One space per bedroom in addition to the requirements for principal residents.
(14)
Commercial indoor lodging. Facilities that provide overnight housing in individual rooms or suites with each room or suite having a private bathroom. Such land uses may provide in-room or in-suite kitchens, and may also provide indoor recreational facilities for the exclusive use of their customers. Restaurant, arcades, fitness centers, and other on-site facilities available to non-lodgers are not considered accessory uses and therefore do not require review as a separate land use. Regulations for commercial indoor lodging uses include the following:
(a)
If located on the same side of a building as abutting residentially zoned property, no customer entrance of any kind shall be permitted within 100 feet of a residentially zoned property.
(b)
Facility shall provide a landscaped buffer with a minimum opacity of 0.60 along all property borders abutting residentially zoned property.
(c)
Minimum required parking: One space per bedroom, plus one space for each employee on the largest work shift.
(d)
Zoning and occupancy permit: All commercial indoor lodging facilities must obtain a zoning and occupancy permit from the City of Portage.
(e)
Licenses: All commercial indoor lodging facilities must hold a non-expired license from the Department of Agriculture, Trade and Consumer Protection (DATCP).
(15)
Boarding house. Any residential use with shared bathroom, living, and/or kitchen facilities. Regulations for boarding houses include the following:
(a)
Facility shall provide a landscaped buffer with a minimum opacity of 0.60 along all property borders abutting residentially zoned property.
(b)
Shall provide a minimum of one on-site parking space for each room for rent.
(c)
Shall be located in an area of transition from residential land uses to non-residential land uses.
(d)
Minimum required parking: One space per room for rent, plus one space per each employee on the largest work shift.
(e)
Zoning and occupancy permit: All boarding houses must obtain a zoning and occupancy permit from the City of Portage.
(16)
Campground. Campgrounds include any facilities designed for overnight accommodation of persons in tents, travel trailers, or other mobile or portable shelters or vehicles. Regulations for campgrounds include the following:
(a)
Facility shall provide a landscaped buffer with a minimum opacity of 0.70 along all property borders abutting residentially zoned property.
(b)
Minimum required parking: One and one-half spaces per campsite.
(17)
Commercial animal service and boarding. Facilities where animal services and boarding is provided, such as veterinary clinics, pet grooming, kennels, and stables. Exercise yards, fields, training areas, and trails associated with such land uses are considered accessory to such land uses and do not require separate consideration. Regulations for commercial animal service and boarding uses include the following:
(a)
Each animal shall be provided with an indoor containment area.
(b)
The minimum permitted size of horse or similar animal stall shall be 100 square feet.
(c)
Special events such as shows, exhibitions, and contests shall only be permitted when a temporary use permit has been secured.
(d)
Minimum required parking: One space per every 1,000 square feet of gross floor area.
(18)
Vehicle sales. The display and sale or rental of vehicles outside of an enclosed building. Such land uses also include a repair shop associated with the vehicle display lot and sales building. Such land uses do not include the storage or display of inoperative vehicles or equipment, or other materials typically associated with a junkyard or salvage yard (see subsection 90-59(4)). If a land use displays only a limited amount of for sale or rent vehicles outside of an enclosed building, such use may instead be considered incidental to indoor sales under subsection 90-62(13). Regulations for vehicle sales include the following:
(a)
The area of outdoor vehicle sales shall be calculated as the area which would be enclosed by a required physical separation installed and continually maintained in the most efficient manner which completely encloses all vehicles displayed outdoors.
(b)
The display of vehicles shall not be permitted in required landscaped areas, bufferyards, or within setback areas for the principal structure.
(c)
Display areas shall be separated from any circulation area by a minimum of ten feet. This separation shall be clearly delimited by a physical separation such as a greenway, curb, fence, line of planters, or by a clearly marked paved area.
(d)
Signs, screening, enclosures, landscaping, or materials being displayed shall not interfere in any manner with either on-site or off-site traffic visibility, including potential traffic/traffic and traffic/pedestrian conflicts.
(e)
Vehicle sales shall be permitted during the entire calendar year; however, if goods are removed from the display area all support fixtures used to display the goods shall be removed within ten calendar days of the goods' removal.
(f)
Inoperative vehicles or equipment, or other items typically stored or displayed in a junkyard or salvage yard, shall not be displayed for this land use.
(g)
Facility shall provide a landscaped buffer with a minimum opacity of 0.60 along all borders of the display area abutting residentially zoned property.
(h)
In no event shall the display of items reduce or inhibit the use or number of parking stalls provided on the property below the requirement established by the provisions (j), below. If the number of provided parking stalls on the property is already less than the requirement, such display area shall not further reduce the number of parking stalls already present.
(i)
Minimum required parking: One space per 300 square feet of gross floor area.
(19)
Vehicle repair and maintenance. Vehicle repair and maintenance services, independent of vehicles sales (see subsection 90-58(17)), include all land uses which perform maintenance services (including repair) to motorized vehicles and contain all operations (except vehicle storage) entirely within an enclosed building. Regulations for vehicle repair and maintenance uses include the following:
(a)
Storage of abandoned vehicles is prohibited.
(b)
Facility shall provide a landscaped buffer with a minimum opacity of 0.60 along all property borders abutting residentially zoned property.
(c)
Minimum required parking: One space per 300 square feet of gross floor area. Adequate on-site parking is required for all customer and employee vehicles.
(Ord. No. 13-005, § 1, 3-28-2013; Ord. No. 21-02, § IV, 8-26-2021)
(1)
Indoor storage and wholesaling. Land uses primarily oriented to the receiving, holding, and shipping of packaged materials for a single business or a single group of businesses. With the exception of loading and parking facilities, such land uses are contained entirely within an enclosed building. Examples of this land use include conventional warehouse facilities, long-term indoor storage facilities, and joint warehouse and storage facilities. Regulations for indoor storage and wholesaling uses include the following:
(a)
Minimum required parking: One space per 2,000 square feet of gross floor area.
(2)
Outdoor storage or wholesaling. Land uses primarily oriented to the receiving, holding, and shipping of packaged materials for a single business or a single group of businesses. Such a land use, in which any activity beyond loading and parking is located outdoors, is considered an outdoor storage and wholesaling land use. Examples of this land use include contractors' storage yards, equipment yards, lumber yards, coal yards, landscaping materials yard, construction materials yards, and shipping materials yards. Such land uses do not include the storage of inoperative vehicles or equipment, or other materials typically associated with a junkyard or salvage yard. Regulations for outdoor storage and wholesaling uses include the following:
(a)
All outdoor storage areas shall be completely enclosed by any permitted combination of buildings, structures, walls, and fencing. Such walls and fencing shall be a minimum of eight feet in height and shall be designed to completely screen all stored materials from view from non-industrialized areas at an elevation of five feet above the grade of all adjacent properties and rights-of-way. Said walls or fencing have a minimum opacity of 0.80.
(b)
The storage of items shall not be permitted in required landscaping areas.
(c)
Storage areas shall be separated from any vehicular parking or circulation area by a minimum of ten feet. This separation shall be clearly delimited by a physical separation such as a greenway, curb, fence, line of planters, or by a clearly marked paved area.
(d)
Materials being stored shall not interfere in any manner with either on-site or off-site traffic visibility, including potential traffic/traffic and traffic/pedestrian conflicts.
(e)
Inoperative vehicles or equipment, or other items typically stored in a junkyard or salvage yard, shall not be stored under the provisions of this land use.
(f)
Facility shall provide a landscaped buffer with a minimum opacity of 0.60 along all property borders abutting residentially zoned property.
(g)
All outdoor storage areas shall be located no closer to a residentially zoned property than the required minimum setback for buildings on the subject property.
(h)
In no event shall the storage of items reduce or inhibit the use or number of parking stalls provided on the property below the requirement established by the provisions (i), below. If the number of provided parking stalls on the property is already less than the requirement, such storage area shall not further reduce the number of parking stalls already present.
(i)
Minimum required parking: One space for every 10,000 square feet of gross storage area, plus one space per each employee on the largest work shift.
(3)
Personal storage facility. Personal storage facilities (also known as "mini-warehouses") are land uses oriented to the indoor storage of items entirely within partitioned buildings having an individual access to each partitioned area. Such storage areas may be available on either a condominium or rental basis. Regulations for personal storage facilities include the following:
(a)
Facility shall be designed so as to minimize adverse visual impacts on nearby developments. The color, exterior materials, and orientation of proposed buildings and structures shall complement surrounding development.
(b)
Facility shall provide a landscaped buffer with a minimum opacity of 0.80 along all property borders abutting residentially zoned property.
(c)
No electrical power shall be run to the storage facilities, except for exterior lighting.
(d)
Minimum required parking: One space for each employee on the largest work shift.
(4)
Junkyard or salvage yard. Outdoor facilities used for a salvaging operation, including but not limited to the above-ground storage and/or sale of waste paper, rags, scrap metal, and any other discarded materials intended for sale and/or the collection, dismantlement, or salvage of two or more unlicensed and/or inoperative vehicles. Regulations for junkyard or salvage yard uses include the following:
(a)
Facility shall provide a landscaped buffer with a minimum opacity of 1.00 along all property borders abutting residentially zoned property.
(b)
All buildings, structures, outdoor storage areas, and any other activity areas shall be located a minimum of 100 feet from roads and 50 feet from all lot lines.
(c)
In no instance shall activity areas be located within a required frontage landscaping areas.
(d)
Shall not involve the storage, handling, or collection of hazardous materials.
(e)
Minimum required parking: One space for every 20,000 square feet of gross storage area, plus one space for each employee on the largest work shift.
(5)
Waste disposal/composting facility. Waste disposal facilities are any areas used for the collection and disposal of solid wastes and recyclable materials including those defined by Wis. Stats.§ 289.01(33). Composting facilities are any land uses devoted to the collection, storage, processing, and or disposal of vegetation. Regulations for waste disposal or composting facilities include the following:
(a)
Such land uses shall comply with all county, state, and federal regulations.
(b)
Facility shall provide a landscaped buffer with a minimum opacity of 1.00 along all borders of the property.
(c)
All buildings, structures, and activity areas shall be located a minimum of 300 feet from all lot lines.
(d)
Composting operations shall not involve on-site holding, storage or disposal of food scraps, other vermin-attracting materials, or hazardous wastes defined by State Statutes.
(e)
Operations shall not involve the on-site holding, storage, or disposal of hazardous materials in any manner.
(f)
Required site plans shall include detailed site restoration plans, which shall include at minimum, detailed grading and re-vegetation plans, and a detailed written statement indicating the timetable for such restoration. A surety bond, in an amount equivalent to 110 percent of the costs determined to be associated with said restoration (as determined by a third party selected by the city), shall be filed with the city by the petitioner (subject to approval by the zoning administrator), and shall be held by the city for the purpose of ensuring that the site is restored to its proposed condition. (The requirement for said surety is waived for facilities owned by public agencies.)
(g)
Minimum required parking: One space for each employee on the largest work shift.
(6)
Recycling center. Facilities designed to be a collection point where only recyclable items are sorted and/or temporarily stored prior to shipment for reuse and/or processing into new products. Examples of recyclable materials include newspapers, magazines, books, metal, glass, electronics, aluminum, etc. Regulations for recycling centers include the following:
(a)
Shall comply with all county, state and federal regulations, including the issuance of a Department of Natural Resources permit under state statutes.
(b)
All buildings, structures, and activity areas on composting operation sites shall be located a minimum of 50 feet from all lot lines.
(c)
Facility shall provide a landscaped buffer with a minimum opacity of 1.00 along all borders of the property.
(d)
Operations shall not involve the on-site holding, storage, or disposal of hazardous materials in any manner.
(e)
Required site plans shall include detailed site restoration plans, which shall include at minimum, detailed grading and re-vegetation plans, and a detailed written statement indicating the timetable for such restoration. A surety bond, in an amount equivalent to 110 percent of the costs determined to be associated with said restoration (as determined by a third party selected by the city), shall be filed with the city by the petitioner (subject to approval by the zoning administrator), and shall be held by the city for the purpose of ensuring that the site is restored to its proposed condition. (The requirement for said surety is waived for facilities owned by public agencies.)
(f)
Minimum required parking: One space for each employee on the largest work shift.
(Ord. No. 13-005, § 1, 3-28-2013)
(1)
Airport. Transportation facilities providing takeoff, landing, servicing, storage, and other services to any type of air transportation, including ultralight aircraft, hang gliders, parasails, and related equipment. Regulations for airports include the following:
(a)
All buildings, structures, outdoor airplane or helicopter storage areas, and any other activity areas shall be located a minimum of 20 feet from all lot lines.
(b)
Facility shall provide a landscaped buffer with a minimum opacity of 1.00 along all borders of the property not otherwise completely screened from activity areas by buildings or structures.
(c)
Minimum required parking: One space per each employee on the largest work shift, plus one space per every five passengers based on average daily ridership.
(2)
Distribution center. Facilities oriented to the short-term indoor storage and possible repackaging and reshipment of materials involving the activities and products of a single user. Retail outlets associated with this use shall be considered accessory uses per section 90-62(14). Regulations for distribution centers include the following:
(a)
Facility shall provide a landscaped buffer with a minimum opacity of 1.00 along all property borders abutting residentially zoned property.
(b)
All buildings, structures, outdoor storage areas, and any other activity areas shall be located a minimum of 100 feet from all lot lines abutting residentially zoned property.
(c)
In no instance shall activity areas be located within a required frontage landscaping areas.
(d)
Minimum required parking: One space per each employee on the largest work shift.
(3)
Freight terminal. Land and buildings representing either end of one or more truck carrier line(s) which may have some or all of the following facilities: yards, docks, management offices, storage sheds, buildings, and/or outdoor storage areas, freight stations, and truck maintenance and repair facilities, principally serving several or many businesses and always requiring trans-shipment. Regulations for freight terminals include the following:
(a)
Facility shall provide a landscaped buffer with a minimum opacity of 1.00 along all property borders abutting residentially zoned property.
(b)
All buildings, structures, outdoor storage areas, and any other activity areas shall be located a minimum of 100 feet from all lot lines abutting residentially zoned property.
(c)
In no instance shall activity areas be located within a required frontage landscaping areas.
(d)
Minimum required parking: One space per each employee on the largest work shift.
(4)
Off-site parking lot. Off-site parking lots are any areas used for the temporary parking of vehicles which are fully registered, licensed and operative. Regulations for off-site parking lots include the following:
(a)
Access and vehicular circulation shall be designed so as to discourage cut-through traffic.
(Ord. No. 13-005, § 1, 3-28-2013; Ord. No. 21-02, § IV, 8-26-2021; Ord. No. 22-002, § 1, 2-10-2022)
(1)
Light industrial. Industrial facilities at which all operations (with the exception of loading operations) are conducted entirely within an enclosed building; are not potentially associated with nuisances such as odor, noise, heat, vibration, and radiation which are detectable at the property line; do not pose a significant safety hazard (such as danger of explosion); and comply with all of the performance standards listed for potential nuisances in article VII. Light industrial land uses may conduct retail sales activity as an accessory use per section 90-62(15). Regulations for light industrial uses include the following:
(a)
All activities, except loading and unloading, shall be conducted entirely within the confines of a building.
(b)
Minimum required parking: One space per each employee on the largest work shift.
(2)
Heavy industrial. Industrial facilities which do not comply with one or more of the following criteria: are conducted entirely within an enclosed building; are not potentially associated with nuisances such as odor, noise, heat, vibration, and radiation which are detectable at the property line; and do not pose a significant safety hazard (such as danger of explosion). More specifically, heavy industrial land uses are industrial land uses which may be wholly or partially located outside of an enclosed building; may have the potential to create certain nuisances which are detectable at the property line; and may involve materials which pose a significant safety hazard. However, in no instance shall a heavy industrial land use exceed the performance standards listed in article VII. Examples of heavy industrial land uses include meat product producers; alcoholic beverage producers; paper, pulp or paperboard producers; chemical and allied product producers (except drug producers) including poison or fertilizer producers; petroleum and coal product producers; asphalt, concrete or cement producers; tanneries; stone, clay or glass product producers; primary metal producers; heavy machinery producers; electrical distribution equipment producers; electrical industrial apparatus producers; transportation vehicle producers; commercial sanitary sewage treatment plants; railroad switching yards; and recycling facilities not involving the on-site storage of salvage materials. Regulations for heavy industrial uses include the following:
(a)
Facility shall provide a landscaped buffer with a minimum opacity of 1.00 along all borders of the property other than permanent open space abutting properties which are not zoned M-2 Heavy Industrial.
(b)
All outdoor activity areas shall be located a minimum of 100 feet from residentially zoned property.
(c)
No materials shall be stacked or otherwise stored so as to be visible over landscaping screening elements.
(d)
Minimum required parking: One space per each employee on the largest work shift.
(3)
Non-metallic extraction. Land uses involving the removal of soil, clay, sand, gravel, rock, minerals, peat, or other material in excess of that required for approved on-site development or agricultural activities. Regulations for non-metallic extraction uses include the following:
(a)
Shall receive approval from the county prior to action by the city and shall comply with all county, state, and federal regulations.
(b)
Facility shall provide a landscaped buffer with a minimum opacity of 1.00 along all borders of the property other than permanent open space.
(c)
All buildings, structures, and activity areas shall be located a minimum of 300 feet from all lot lines.
(d)
Required site plans shall include detailed site restoration plans, which shall include, at minimum, detailed grading and re-vegetation plans and a detailed written statement indicating the timetable for such restoration. A surety bond, in an amount equivalent to 110 percent of the costs determined to be associated with said restoration (as determined by a third party selected by the city), shall be filed with the city by the petitioner (subject to approval by the zoning administrator), and shall be held by the city for the purpose of ensuring that the site is restored to its proposed condition. (The requirement for said surety is waived for publicly-owned extraction facilities.)
(e)
Minimum required parking: One space per each employee on the largest work shift.
(Ord. No. 13-005, § 1, 3-28-2013; Ord. No. 21-02, § IV, 8-26-2021)
(1)
Accessory yard structure. Accessory yard structures include detached private residential garages, carports primarily use to shelter parked passenger vehicles, and utility sheds used to store residential maintenance equipment of the subject property. Regulations for accessory yard structures include the following:
(a)
One attached or detached garage and one accessory yard structure shall be permitted by right.
(b)
The combined gross floor area of garages, carports, and utility sheds shall not exceed the gross floor area of the principal structure on the lot.
(c)
For garages in embankments in front yards, where the mean natural grade of a front yard is more than 8 feet above the curb level, a private garage may be erected within the front yard, provided as follows:
1.
That such private garage shall be located not less than five feet from the front lot line;
2.
That the floor level of such private garage shall be not more than one foot above the curb level; and
3.
That at least one-half the height of such private garage shall be below the mean grade of the front yard.
(d)
A conditional use permit is required for:
1.
A combination of accessory structures exceeding a total of 1,000 square feet.
2.
More than two accessory structures.
3.
A street-loaded garage within the R-T Residential District (alley-loaded garages are permitted by right).
(2)
Private residential recreation. This land use includes all active outdoor recreational facilities located on a private residential lot which are not otherwise listed herein. Common examples of these accessory uses include swing sets, tree houses, basketball courts, tennis courts, swimming pools, and recreation-type equipment. Regulations for private residential recreation uses include the following:
(a)
Exterior lighting of structure or facility shall be equal to or less than 0.5 foot candles.
(b)
Tree houses and similar platforms shall not exceed a platform height of eight feet and shall be setback twice their elevation from any property line.
(3)
Upper story dwelling unit. Upper story dwelling units are dwelling units which are located directly above the ground floor of a building used for an office, commercial, or institutional land use. Residential uses will be permitted on the ground floor of a building used for an office, commercial, or institutional land use, but may not be within the first 24 feet of the ground floor measured from the front of the building. Regulations for upper story dwelling units include the following:
(a)
The gross floor area devoted to commercial apartments shall be counted toward the floor area of a nonresidential development.
(b)
Minimum required parking: Except in the downtown zoning district, a minimum of one off-street parking space shall be provided for each bedroom within a commercial apartment. Parking spaces provided by nonresidential land uses on the site may be counted for this requirement with the approval of the zoning administrator.
(4)
Caretaker's residence. This land use includes any residential unit which provides permanent housing for a caretaker of the subject property in either an attached or detached configuration. Regulations for caretaker's residence include the following:
(a)
Shall provide housing only for on-site caretaker and family.
(5)
In-family suite. The in-family suite is an area within a dwelling unit that may contain a separate kitchen, dining, bathroom, laundry, living, sleeping, and recreation areas, including exterior porches, patios, and decks. In addition to the required internal physical connection, separate outdoor access or separate access to the garage may be provided. However, external stairs serving as the primary access to the in-family suite are prohibited. Regulations for in-family suites include the following:
(a)
The dwelling unit and the in-family suite shall together appear as a single-family dwelling. A separate walled garage area or driveway is not permitted.
(b)
A separate address for the in-family suite is not permitted.
(c)
A separate utility connection or meters are not permitted.
(d)
A physical all-weather connection between the main living area and the in-family suite must be present. This required connection may not occur through an attic, basement, garage, porch, or other non-living area. A door may be used to separate the in-family suite from the rest of the dwelling unit, but may not be locking, except that a locking door may be used for the bedroom and bathroom doors of the in-family suite.
(e)
The in-family suites may not be occupied by a non-family member.
(f)
In-family suites should be considered and regulated as part of a single-family dwelling unit.
(g)
When an application is submitted for a building permit to accommodate what is explicitly listed as, or could possibly serve as, an in-family suite, the building plan shall be marked as "not a separate dwelling unit or apartment," and a signed letter from the applicant stating agreement with this condition shall be filed.
(6)
Farm residence. A farm residence is a single-family detached dwelling unit located on the same property as any of the principal agricultural land uses listed in section 90-56.
(7)
Private residential kennel. A maximum of any combination of four dogs and/or cats (over five months of age) are permitted by right for any one residential unit. Any residence housing more dogs and/or cats in any combination shall be considered a private residential kennel and is subject to regulations included in section 6-54 of the Municipal Code.
(8)
Private residential stable. A private residential stable is a structure facilitating the keeping of horses (or similar animals) on the same site as a residential dwelling. Regulations for private residential stables include the following:
(a)
A minimum lot area of 175,000 square feet (4 acres) is required for a private residential stable.
(b)
A maximum of one horse per two acres of fully enclosed (by fencing and/or structures) area is permitted.
(c)
Outdoor containments for animals shall be located a minimum of 25 feet from any residentially zoned property.
(d)
The minimum permitted size of horse or similar animal stall shall be 100 square feet.
(9)
Home occupation. It is the intent of this section to provide a means to accommodate a small home-based family or professional business without the necessity of a rezoning from a residential to a business district. Approval of an expansion of a home occupation at a future time beyond the limitations of this section is not to be anticipated; relocation of the business to an area that is appropriately zoned may be necessary. Home occupations are economic activities performed within any single-family detached residence which comply with the following requirements. Examples include personal and professional services and handicrafts which comply with all of the following requirements:
(a)
The use is to be clearly incidental to residential use.
(b)
The area used to conduct the home occupation shall not exceed 25 percent of the improved square footage, excluding the garage, and the occupation shall be conducted within the principal building, except for sales of home grown produce grown on site.
(c)
Any home occupation shall be carried on only by a member of the immediate family residing on the premises.
(d)
Any home occupation involving customer visits to the premises shall require a conditional use permit.
(e)
No activity, materials, goods or equipment incidental to the home occupation shall be externally visible, except for home grown produce grown on site.
(f)
No home occupation shall endanger the public health and safety and shall not interfere with other parcels in the neighborhood.
(g)
No food articles shall be sold or offered for sale on the premises except for home grown produce grown on site.
(h)
No mechanical or electrical equipment shall be installed or maintained other than such as customarily incidental to domestic use.
(i)
Only one sign for professional services shall be allowed. Such sign shall not be illuminated and shall not exceed three square feet.
(10)
In-home daycare (4—8 children). Occupied residences in which a qualified person or persons provide childcare for four to eight children. The care of less than four children is not subject to the regulations of this chapter.
State Law reference— Wis. Stats. § 66.1017(1)(a).
(11)
In-Home Daycare (9—15 children). Occupied residences in which a qualified person or persons provide childcare for nine to 15 children.
State Law reference— Wis. Stats. § 48.65.
(12)
Company cafeteria. A food service operation which provides food only to company employees and their guests, meets state food service requirements, and is located on the same property as a principal land use engaged in an operation other than food service.
(13)
Company recreation. Any active or passive recreational facility located on the same site as a principal land use, and which is reserved solely for the use of company employees and their guests. Regulations for company recreation uses include the following:
(a)
All structures and actively used outdoor areas shall be located a minimum of 50 feet from any residentially zoned property.
(b)
Outdoor recreation facilities using night lighting and adjoining a residentially zoned property shall install and continually maintain a landscaped buffer with a minimum opacity of 0.60. Facilities using night lighting shall require a conditional use permit.
(14)
Incidental indoor sales. These land uses include any retail sales activity conducted exclusively indoors which is incidental to a principal land use such as warehousing, wholesaling, or any light industrial land use on the same site. Regulations for incidental indoor sales uses include the following:
(a)
Adequate parking, per the requirements of subsection 90-58(2) shall be provided for customers. Said parking shall be in addition to that required for customary storage or light industrial activities.
(b)
The total area devoted to sales activity shall not exceed 25 percent of the total area of the buildings on the property. Areas devoted to artisan studio uses such as custom ceramics, glass, wood, paper, fabric, and similar crafts may exceed 5,000 square feet with the granting of a conditional use permit for such use.
(c)
Shall provide restroom facilities directly accessible from retail sales area.
(d)
Retail sales area shall by physically separated by a wall from other activity areas.
(15)
Incidental light industrial. Any light industrial activity conducted exclusively indoors which is incidental to a principal land use such as indoor sales or service, on the same site. Regulations for incidental light industrial uses include the following:
(a)
The total area devoted to light industrial activity shall not exceed 15 percent of the total area of the buildings on the property, or 5,000 square feet, whichever is less.
(b)
Production area shall be physically separated by a wall from other activity areas and shall be soundproofed to the level required by section 90-124 of this chapter for all adjacent properties.
(16)
Incidental outdoor display. The sale and display of merchandise or equipment outside of an enclosed building and is incidental to a principal commercial or industrial land use. Regulations for incidental outdoor display uses include the following:
(a)
Outdoor display of merchandise or equipment shall not exceed 12 days.
(b)
Display area shall not exceed 25 percent of gross floor area of principal building on the site.
(17)
Migrant labor camp. Migrant labor camps include any facility subject to the regulation of Wis. Stats. 103.90(3)(a). Regulations for migrant labor camps include the following:
(a)
Shall be surrounded by a landscaped buffer with a minimum opacity of 0.60 along all property lines adjacent to all properties in residential, office, or business zoning districts.
(b)
Migrant labor camp shall be an accessory use to an active principal use and under the same ownership.
(18)
On-site accessory parking lot. On-site parking lots are any areas located on the same site as the principal land use which are used for the temporary parking of vehicles which are fully registered, licensed, and operative. Regulations for on-site accessory parking lots include the following:
(a)
Access and vehicular circulation shall be designed so as to discourage cut-through traffic.
(19)
Drainage structure. These include all improvements including, but not limited to swales, ditches, culverts, drains, tiles, gutters, levees, basins, detention or retention facilities, impoundments, and dams intended to effect the direction, rate and/or volume of stormwater runoff, snow melt, and/or channelized flows across, within and/or away from a site. Regulations for drainage structures include the following:
(a)
All drainage improvements shall comply with the city's stormwater regulations listed in article VIII of chapter 10 of the Municipal Code.
(20)
Individual septic disposal system. This land use includes any state-enabled, county-approved septic disposal system. Regulations for individual septic disposal systems include the following:
(a)
Minimum lot size of 0.5 acres.
(21)
Wind energy conversion system (WECS). A machine or mechanism that converts the kinetic energy in the wind into a usable form of electrical or mechanical energy, such as a wind turbine or windmill. Regulations for WECS include the following:
(a)
The WECS shall be located such that the furthest extension of the apparatus does not cross any site or property line.
(b)
If the WECS is not maintained in operational condition and poses a potential safety hazard, the owner or operator shall take expeditious action to remedy the situation. If the WECS has not been in operational condition for a period of one year, the WECS shall be considered as posing a potential safety hazard. The city reserves the authority to abate any hazardous situation and to pass the cost of such abatement onto the owner or operator of the system. If the city determines that the wind energy conversion system has been abandoned and poses a safety hazard, the system shall be removed within 45 days of written notice to the owner or operator of the system.
(c)
WECS shall be set back from all property lines at a distance that is greater than or equal to the maximum height of the WECS structure.
(d)
No WECS shall be constructed on any lot prior to establishment of an allowable principal structure, unless otherwise stated in this chapter.
(22)
Solar energy system. An energy system which converts solar energy to usable thermal, mechanical, chemical, or electrical energy. Regulations for solar energy systems include the following:
(a)
Roof top solar energy systems are permitted by right in all zoning districts as accessory structures.
(b)
Building-mounted and free standing solar energy systems that meet the setbacks for accessory structures are permitted by right in all zoning districts. Building-mounted and free standing solar energy systems that do not meet the setbacks for accessory structures are permitted as conditional uses in all zoning districts.
(c)
Solar energy systems are limited to the height restriction for principal buildings of the district in which they are located.
(d)
Free standing solar energy systems shall comply with the height limits for accessory structures. Building-mounted solar energy systems shall comply with the height limits for primary structures.
(e)
No person in control of property shall allow a tree or shrub to be placed or grow so as to cast a shadow between the hours of 9:00 a.m. and 3:00 p.m. Central Daylight Saving Time, upon a solar collector energy system capable of generating more than 1,000,000 British thermal units per year, and which supplies a part of the energy requirements for improvements on the property where the solar energy system is permanently located. The provisions of this subsection shall not require the removal of existing vegetation.
(f)
The requirements of Wisconsin Statutes, including but not limited to §§ 66.0401 and 66.0403, shall apply to all solar energy systems.
(23)
Chicken coop and run. Refer to section 6-122.
(a)
No chicken coop or run shall be located closer than 15 feet to any lot line, unless neighbor approval requirements are met.
(b)
No chicken coop shall be located in the front or side yard of a parcel, whether outside the setback or not.
(c)
Chicken coops shall not be included in the number of permitted accessory structures on a lot.
(d)
Chickens shall not be permitted in any other structure on the lot, including garages, basements and attics.
(Ord. No. 13-005, § 1, 3-28-2013; Ord. No. 21-02, § IV, 8-26-2021)
(1)
Clear cutting. The one-time, continuing, or cumulative clearing, cutting, harvesting, or other destruction (including by fire) of trees in an area (or combined areas) of more than 30 percent of the woodlands on a property (or up to 100 percent for developments approved prior to the effective date of this chapter). Any owner of property who intentionally clear cuts any area of his/her property or who intentionally solicits or causes another to intentionally clear cut any area of his/her property without first having secured a conditional use permit for such activity shall be subject to a forfeiture for such wrongful conduct and shall be required to implement the mitigation standards required for the destruction of woodlands solely at his/her expense, including costs associated with site inspection to confirm the satisfaction of mitigation requirements. Areas having been clear cut unintentionally as a result of fire shall not subject the owner of the property to forfeiture for such non-approved clear cutting activity, but shall require the satisfaction of mitigation requirements at the owner's expense, including cost associated with site inspection to confirm the satisfaction of mitigation requirements.
(a)
Clear cutting requires a conditional use permit.
(b)
Applicant shall demonstrate that clear cutting will improve the level of environmental protection on the subject property.
(c)
Areas of the subject property which are clear cut beyond the limitations established above shall be replanted.
(d)
Clear cutting shall not be permitted within required landscaped areas or within an area within the C-1 resource conservation overlay district.
(2)
Selective cutting. The one-time, continuing, or cumulative clearing, cutting, harvesting, or other destruction of trees (including by fire) where the extent of such activity is limited to an area (or combined areas) of less than or equal to 30 percent of the woodlands on the property (or up to 100 percent for developments approved prior to the effective date of this chapter). Selective cutting activity shall be limited to areas located within development pads which are designated on recorded plats or certified survey maps. The destruction of trees in an area in excess of this amount of the woodlands on the property shall be considered clear cutting (see (1), above).
(3)
Filling. Filling includes any activity involving the modification of the earth's surface above that in its undisturbed state. Regulations for filling activities include the following:
(a)
Shall not exceed over 4,000 square feet in area or 500 cubic yards of fill
(b)
Shall not create drainage onto other properties.
(c)
Shall not impede on-site drainage.
(d)
Shall comply with provisions of the Chapter 70, Subdivisions.
(4)
Outdoor assembly. Includes any organized outdoor assembly of more than 100 persons, such as an outdoor wedding or tent meetings. Regulations for outdoor assembly uses include the following:
(a)
Activities shall not obstruct pedestrian or vehicular circulation, including vehicular sight distances.
(b)
Adequate parking, drinking water, and toilet facilities shall be provided, and shall be described in the application.
(c)
Adequate provisions for crowd control shall be made and shall be described within the application.
(d)
Shall comply with standards and regulations listed in the City of Portage Nuisance Ordinance in Chapter 26, Article III.
(e)
Shall comply with standards and procedures applicable to all temporary uses.
(5)
Contractor's project office. Any structure containing an on-site construction management office for an active construction project, including those used for electricians and plumbers. Regulations for contractor's project offices include the following:
(a)
Facility(ies) shall be removed within ten days of issuance of occupancy permit.
(b)
Shall not be used for sales activity.
(c)
Projects requiring land use to be in place for more than two years shall require a conditional use permit.
(d)
Shall comply with standards and procedures applicable to all temporary uses.
(6)
Contractor's on-site equipment storage. Any structure or outdoor storage area designed for the on-site storage of construction equipment and/or materials for an active construction project. Regulations for contractor's on-site equipment storage uses include the following:
(a)
Facility(ies) shall be removed within ten days of issuance of occupancy permit.
(b)
Projects requiring land use to be in place for more than 2 years shall require a conditional use permit.
(c)
Shall comply with standards and procedures applicable to all temporary uses.
(7)
General temporary outdoor sales. The display of any items outside the confines of a building which is not otherwise permitted as permitted or conditional use or a special event otherwise regulated by the Municipal Code. Examples of this land use include but are not limited to seasonal garden shops, tent sales, Christmas tree sales, bratwurst stands, and more than 3 garage sales per year. Please note temporary fireworks sales require a permit per Sect. 30-415. Regulations for general temporary outdoor sales include the following:
(a)
The user shall provide a site plan of the temporary outdoor activities to the zoning administrator for approval prior to any activity. The site plan shall be in compliance with the following regulations:
(i)
Display shall not obstruct pedestrian or vehicular circulation, including vehicular sight distance.
(8)
On-site real estate sales office. On-site real estate sales offices include any building that serves as an on-site sales office for a development project. Regulations for on-site real estate offices include the following:
(a)
Structure shall not exceed 5,000 square feet in gross floor area.
(b)
Facility shall be removed or converted to a permitted land use within 10 days of the completion of sales activity.
(c)
Projects requiring land use to be in place for more than 365 days shall require a conditional use permit.
(d)
Shall comply with standards and procedures applicable to all temporary uses.
(9)
Relocatable building. Any manufactured building which serves as a temporary building for less than six months. Regulations for relocatable buildings include the following:
(a)
Shall conform to all setback regulations.
(b)
Shall conform to all building code regulations.
(c)
Shall comply with standards and procedures applicable to all temporary uses.
(10)
Seasonal outdoor sales of farm products. Seasonal outdoor sales of farm products include any outdoor display of farm products not otherwise regulated by the Municipal Code. Regulations for seasonal outdoor sales of farm products include the following:
(a)
Display shall not obstruct pedestrian or vehicular circulation, including vehicular sight distances.
(b)
Adequate parking shall be provided.
(c)
If subject property is located adjacent to a residential area, sales and display activities shall be limited to daylight hours.
(d)
Shall comply with standards and procedures applicable to all temporary uses.
(11)
Temporary portable storage container. A portable storage container designed and used primarily for temporary storage of household goods and other such materials for use on a limited basis. Regulations for temporary portable storage containers include the following:
(a)
Containers shall not exceed 260 square feet in size with a maximum outside dimension of nine feet in height for residentially zoned properties and shall not exceed 500 square feet in size and nine feet in height (outside dimension) for commercial properties.
(b)
The container shall be permitted on residential property for up to 30 days or commercial property up to 60 days. A one-time extension to the time limits (maximum 30 additional days) for placement of a temporary portable storage container may be granted by the zoning administrator. Locating storage containers on properties in excess of these durations shall require a conditional use permit per Section 90-472.
(c)
The temporary portable storage container cannot encroach on the public right-of-way, neighboring property, sidewalk, or be placed in the street. The unit must be sited on asphalt, concrete, gravel, or hard paved surface.
(d)
All temporary residential and commercial use of temporary portable storage containers shall require review and approval by the zoning administrator; however, no fee is required. The applicant shall provide written permission from the land owner to place the temporary portable storage container on the property in accordance with the regulations listed in this section.
(e)
Shall comply with standards and procedures applicable to all temporary uses.
(12)
Temporary shelter. These shelters are typically supported by poles, have a fabric roof and/or sides and are usually used to cover automobiles, boats, recreational vehicles, or fire wood on a temporary or permanent basis. These structures are not designed for the snow loading that can occur during the winter months.
(Ord. No. 13-005, § 1, 3-28-2013; Ord. No. 21-02, § IV, 8-26-2021; Ord. No. 22-002, § 2, 2-10-2022; Ord. No. 22-002, § 3, 2-10-2022)
(1)
Purpose. The purpose of this section is to establish standards that ensure group developments and large developments are properly located and are compatible with the surrounding area and the overall community character of the City of Portage.
(2)
Definitions.
(a)
Group development. Any development located on one lot and comprised of any single instance or any combination of the following development types:
1.
One or more principal multi-family residential buildings with a total of five or more residential units on the same lot.
2.
Two or more principal structures on the same lot, whether currently serving a single use or more than one use.
3.
A mixed-use structure containing both nonresidential uses and residential uses.
4.
A single principal structure housing two or more leased or owned tenant spaces.
5.
Any addition of principal buildings that increases the total number of principal structures on the same lot to two or more.
(b)
Large development. Any development containing any single structure or combination of structures on one or more contiguous lots or building sites on which the total combined gross floor area of all development exceeds 40,000 square feet.
(3)
Common examples.
(a)
Common examples of group developments include apartment or condominium complexes, commercial centers, shopping centers, office centers, and multi-tenant industrial buildings. Single-tenant business or office buildings, one-tenant industrial buildings, four-unit apartment buildings and all Planned Developments are not considered group developments even though such developments may contain lots under common ownership.
(b)
Common examples of large developments include single-tenant institutional, business, or mixed use buildings in excess of 40,000 gross square feet, such as retail stores, restaurants, daycares, schools, or churches.
(c)
Common examples of developments that are both group developments and large developments include multi-tenant, non-residential buildings that are in excess of 40,000 gross square feet, and any multi-building developments in which the combined total of all structures on a site, regardless of diverse ownership, use, or tenancy, combine to exceed 40,000 gross square feet.
(4)
Review and approval.
(a)
All group developments and/or large developments shall be subject to the site plan review and approval process. In addition to the application requirements listed in section 90-474, the applicant shall demonstrate how the proposed development relates to each of the following criteria:
1.
Is consistent with the recommendations and advances the objectives of adopted city planning documents.
2.
Complements the design and layout of nearby buildings and developments.
3.
Enhances, rather than detracts from, the desired character of the city.
(b)
All group developments and large developments require a conditional use permit (see section 90-472 for review and approval procedure) regardless of whether individual use(s) within the development are permitted by right within the applicable district, except where such developments are approved as Planned Developments per sections 90-96 and 90-475.
(c)
Any land use that is either a permitted-by-right land use or a use allowed by conditional use permit within the applicable zoning district may be included within a group development and/or large development.
(d)
Land uses permitted by right in the applicable zoning district shall be permitted by right within an approved group and/or large development, subject to the provisions of this section, unless otherwise restricted by the conditions of approval imposed during the conditional use approval for the group development and/or large development as a whole.
(e)
Land uses allowed by conditional use permit within the applicable zoning district shall be allowed within the group development and/or large development only with conditional use approval for that specific use.
(f)
The detailed land use regulations in article III that pertain to each proposed land use shall apply within a group development and/or large development, as will all other applicable provisions of this chapter.
(g)
Following initial issuance of a conditional use permit for the group development and/or large development as a whole, the subsequent addition of structures, additions to structures, and expansions of parking or storage areas in the group development and/or large development shall require an amendment to the approved conditional use permit regardless of individual land use(s).
(h)
Subsequent changes to individual land uses within a group development and/or large development listed as permitted-by-right uses within the applicable zoning district are allowed without amendment to the group development and/or large development conditional use permit, unless said conditional use permit placed restrictions on change of use.
(i)
Subsequent changes to individual land uses that are allowed only with a conditional use permit may be allowed only under a subsequent conditional use permit for the specific use, regardless of whether said use entails modifications to the building and/or site layout in the group development and/or large development.
(5)
General layout and future divisibility.
(a)
All group developments and/or large developments shall comply with the applicable requirements of this chapter, including, but not limited to: density, intensity, bulk requirements; site design and performance standards; landscaping requirements; and signage requirements.
(b)
All development located within a group development and/or large development shall be located so as to comply with the setbacks of structures and buildings from lot lines to facilitate future subdivision if such action is so desired.
(6)
Standards applicable to all group developments and to all large developments.
(a)
Building placement and site layout. Where buildings are proposed to be distant from a public street, the overall development design shall include smaller buildings closer to the street. Placement and orientation must facilitate appropriate land use transitions and appropriate traffic flow to adjoining roads and neighboring commercial areas and neighborhoods.
(b)
Building materials. Exterior building materials shall be of comparable aesthetic quality on all sides. Building materials such as glass, brick, tinted and decorative concrete block, wood, stucco, and exterior insulation and finish systems may be used, as determined appropriate by the Plan Commission. Decorative architectural metal with concealed fasteners or decorative tilt-up concrete panels may be approved if incorporated into the overall design of the building.
(c)
Building design. The building exterior shall complement other buildings in the vicinity, and shall be of a design determined appropriate by the plan commission, including the following:
1.
The building shall employ varying setbacks, heights, roof treatments, doorways, window openings, and other structural or decorative elements to reduce apparent size and scale of the building.
2.
A minimum of 20 percent of the structure's façades that are visible from a public street shall employ actual protrusions or recesses with a depth of at least six feet. No uninterrupted facade shall extend more than 100 feet.
3.
A minimum of 20 percent of all of the combined linear roof eave or parapet lines of the structure shall employ differences in height, with such differences being six feet or more as measured cave to eave or parapet to parapet.
4.
Roofs with particular slopes may be required by the city to complement existing buildings or otherwise establish a particular aesthetic objective.
5.
Ground floor façades that face public streets shall have arcades (a series of outdoor spaces located under a roof or overhang and supported by columns or arches), display windows, entry areas, awnings, or other such features along no less than 50 percent of their horizontal length. The integration of windows into building design is required, and shall be transparent, clear glass (not tinted) between three to eight feet above the walkway along any facades facing a public street. The use of blinds shall be acceptable where there is a desire for opacity.
6.
Building façades shall include a repeating pattern that includes no less than three of the following elements:
a.
Color change.
b.
Texture change.
c.
Material modular change.
d.
Expression of architectural or structural bay through a change in plane no less than 24 inches in width, such as an offset, reveal, or projecting rib.
e.
At least one of these elements shall repeat horizontally. All elements shall repeat at intervals of no more than 30 feet, either horizontally or vertically.
(d)
Screening.
1.
All ground-mounted and wall-mounted mechanical equipment, refuse containers, and any permitted outdoor storage shall be fully concealed from on-site and off-site ground level views, with materials identical to those used on the building exterior.
2.
All rooftop mechanical equipment shall be screened by parapets, upper stories, or other areas of exterior walls or roofs so as to not be visible from public streets adjacent or within 1,000 feet of the subject property. Fences or similar rooftop screening devices may not be used to meet this requirement.
3.
Loading docks shall be completely screened from surrounding roads and properties. Said screening may be accomplished through loading areas internal to buildings, screen walls that match the building exterior in materials and design, fully opaque landscaping at time of planting, or combinations of the above.
4.
Gates and fencing may be used for security and access, but not for screening, and they shall be of high aesthetic quality. Decorative metal picket fencing and screening is acceptable. Chain link, wire mesh, or wood fencing is not permitted. Decorative, heavy-duty wood gates may be used.
(e)
Parking.
1.
Parking lot design shall employ interior, curbed landscaped islands at all parking aisle ends.
2.
Landscaped islands shall be provided within each parking aisle spaced at intervals no greater than one island per every 20 spaces in that aisle. Islands at the ends of aisles shall count toward meeting this requirement. Each required landscaped island shall be a minimum of 360 square feet in landscaped area.
3.
Landscaped and curbed medians, a minimum of 10 feet in width from back-of-curb to back of-curb, shall be used to create distinct parking areas of no more than 120 parking stalls.
(f)
Bicycle and pedestrian facilities.
1.
The entire development shall provide for safe pedestrian and bicycle access to all uses within the development, connections to existing and planned public pedestrian and bicycle facilities, and connections to adjacent properties.
2.
Pedestrian walkways shall be provided from all building entrances to existing or planned public sidewalks or pedestrian/bike facilities. The minimum width for sidewalks adjacent to buildings shall be ten feet; and the minimum width for sidewalks elsewhere in the development shall be five feet.
3.
Sidewalks other than street sidewalks or building aprons shall have adjoining landscaping along at least 50 percent of their length. Such landscape shall be consistent with the landscaping used for the street frontages.
4.
Crosswalks shall be distinguished from driving surfaces to enhance pedestrian safety by using different pavement materials, pavement color, pavement textures, and signage.
5.
The development shall provide secure, integrated bicycle parking at a rate of one bicycle rack space for every 50 vehicle parking spaces.
6.
The development shall provide exterior pedestrian furniture in appropriate locations at a minimum rate of one seat for every 20,000 square feet of gross floor area. Seating in food service areas, or other areas where food or merchandise purchasing activities occur shall not count toward this requirement. A minimum of four seats shall be located within the store, with a clear view through exit doors to a passenger pick-up or drop-off area.
(g)
Outdoor display areas. Exterior display areas shall be permitted only where clearly depicted on the approved site plan. All exterior display areas shall be separated from motor vehicle routes by a physical barrier visible to drivers and pedestrians, and by a minimum of ten feet. Display areas on building aprons must maintain a minimum walkway width of ten feet between the display items and any vehicle drives.
(h)
Outdoor storage uses and areas. Exterior storage structures or uses, including the parking or storage of vehicles, trailers, equipment, containers, crates, pallets, merchandise, materials, fork lifts, trash, recyclables, and all other items shall be permitted only where clearly depicted and labeled on the approved site plan.
(i)
Central areas and features. Each development exceeding 80,000 square feet in total gross floor area shall provide central area(s) or feature(s) such as a patio/seating area, pedestrian plaza with benches, outdoor playground area, water feature, and/or other such deliberately designated areas or focal points that adequately enhance the development or community. All such areas shall be openly accessible to the public, connected to the public and private sidewalk system, designed with materials compatible with the building and remainder of the site, and shall be maintained over the life of the building project.
(j)
Landscaping. On-site landscaping shall be provided at time of building occupancy and maintained per article VIII.
(k)
Lighting. On-site exterior lighting shall meet the standards in section 90-119.
(l)
Signage. The plan for exterior signage shall provide for modest, coordinated, and complementary exterior sign locations, configurations, and color throughout the development, including outlots. All freestanding signage within the development shall complement on-building signage. Monument style ground signs are required, and shall not exceed a height of eight feet. Consolidated signs for multiple users may be required instead of multiple individual signs. The city may require the use of muted corporate colors on signage if proposed colors are not compatible with the city's design objectives for the area. The use of logos, slogans, symbols, patterns, striping and other markings, and colors associated with a franchise or chain is permitted, but shall be considered as contributing to the number and area of permitted signs.
(m)
Noise. Noise associated with activities at the site shall not create a nuisance to nearby properties.
(n)
Stormwater Management and Erosion Control.
1.
Post-development runoff rates shall not exceed pre-settlement rates.
2.
Existing natural features shall be integrated into the site design as a site and community amenity.
3.
Maintenance of any storm water detention or conveyance features are solely borne by the developer/owner unless dedicated to and accepted by the city.
4.
Adherence to all applicable provisions of Chapter 10, Articles VII and VIII of the Municipal Code shall occur.
(7)
Additional rules applicable to all large developments.
(a)
A large development questionnaire shall be completed and provided along with the conditional use permit application in the format included at the end of this section.
(b)
Compatibility report. The applicant shall provide a compatibility report, submitted with the petition for a conditional use permit, demonstrating adequate evidence that the proposed building and overall development project will be compatible with the comprehensive plan and any detailed neighborhood or special area plan adopted by the city for the site area.
(c)
Traffic impact analysis. The city may require that a traffic impact analysis be completed in accordance with the most current revision of the Traffic Impact Analysis Guidelines published by the Wisconsin Department of Transportation. Such traffic impact analysis shall require the following components:
1.
A demonstration that vehicle access shall be designed to accommodate peak on-site traffic volumes without disrupting traffic on public streets or impairing pedestrian safety. This shall be accomplished through adequate parking lot design and capacity; access drive entry throat length; design, location, and number of traffic control devices; and sidewalks.
2.
Where the traffic impact analysis indicates that a project may cause off-site public roads, intersections, or interchanges to function below a level of service (LOS) C, the city may deny the application, require a size reduction in the proposed development, and/or require the developer to construct and/or pay for required off-site improvements to achieve a LOS C for a planning horizon of a minimum of ten years assuming full build-out of the development.
3.
The city has the option to require a trip generation study.
(d)
Economic and fiscal analysis. The city may require completion of an economic and fiscal impact analysis containing the following items:
1.
Estimate to what extent the proposed project would reduce the proposed market area's economic base by eliminating existing businesses.
2.
Compare and evaluate the projected costs and benefits to the community resulting from the project, including:
a.
Projected costs arising from increased demand for and required improvements to public services and infrastructure.
b.
Value of improvements to public services and infrastructure to be provided by the project.
c.
Projected tax revenues to the city to be generated by the project in the first five years of business.
d.
Projected impact of the project in the first five years on land values (both residential and nonresidential) and potential loss or increase in tax revenues to the City of Portage.
(e)
Detailed neighborhood plan. For a development exceeding 80,000 square feet in total gross floor area of all combined buildings within the development, the city may require that a detailed neighborhood plan be submitted and approved by the plan commission and common council. The detailed neighborhood plan shall be prepared for all areas within 1,500 feet of the subject property, as measured from the outer perimeter of the subject property or group of properties proposed for development, and any other nearby lands as determined by the plan commission to be part of the defined neighborhood. The detailed neighborhood plan shall contain the following specific elements at a scale of not less than 1″ = 400′:
1.
Land use with specific zoning districts and/or land uses.
2.
Transitional treatments such as berms and/or landscaping between areas with differing land uses or character.
3.
Complete transportation network, including pedestrian and bicycle facilities and transit routes and stops, where applicable.
4.
Conceptual stormwater management facilities.
5.
Proposed public facility sites, including parks, schools, conservation areas, public safety facilities and public utility facilities.
6.
Proposed community character themes, including building materials, landscaping, streetscaping, and signage.
7.
Demonstrate that the proposed detailed neighborhood plan is in harmony with the land use, multi-modal transportation, utility, stormwater management, community character provisions of the comprehensive plan.
(f)
Policy on vacation of existing sites. Where any large development in excess of 40,000 square feet of floor area is vacated because the commercial use (sale of goods or merchandise at the building) conducted thereon is being relocated to a different building, the party that vacated the site shall not impose limits on the type of reuse of the vacated site through conditions of sale or lease.
(g)
Additional requirements. All large developments are subject to the following additional requirements:
1.
The developer shall enter into a development agreement with the city, which shall include the payment of all utilities including but not limited to stormwater, sanitary sewer, and street infrastructure. Off-site improvements may also be required as part of the development agreement.
2.
Absolute building area cap. No individual building shall exceed a total of 155,000 square feet in gross floor area. This cap may not be exceeded by the granting of a planned development permit.
3.
All buildings on outlots shall be of architectural quality comparable to the primary structure, as determined by the plan commission.
Large Development Questionnaire
Table C: Economic and Fiscal Impact Analysis Requirements
(Ord. No. 13-005, § 1, 3-28-2013)
LAND USE REGULATIONS
The purpose of this article is to provide detailed descriptions and regulations for land uses established in article II of this chapter.
(Ord. No. 13-005, § 1, 3-28-2013)
Permitted land uses for each zoning district are listed in Article II and summarized in the Table of Land Uses in section 90-52, below. Even if a land use may be indicated as permitted by right or requiring a conditional use permit in a particular district, such a land use may not necessarily be permitted or permissible on a property unless it can be located or implemented on it in full compliance with all of the applicable standards and regulations of this article, or unless an appropriate variance has been granted.
(1)
Principal land uses permitted by right. Principal land uses listed as permitted by right are permitted per the land use requirements of this article; per the density, intensity, and bulk regulations of the specific zoning district in which they are located; per any additional requirements imposed by applicable overlay zoning districts; per all other applicable requirements of this chapter; and per any and all other applicable city, county, state, and federal regulations with jurisdiction over the property.
(2)
Principal land uses permitted as conditional uses. Principal land uses permitted only with a conditional use permit may be permitted subject to all requirements applicable to uses permitted by right as listed in (1), above, plus any additional requirements applicable to that particular land use imposed as part of the conditional use permit process established in section 90-472.
(3)
Accessory Land Uses. Permitted by right accessory land uses are allowed subject to the requirements and exemptions applicable to principal land uses permitted by right in (1), above. Accessory land uses allowed only with a conditional use permit are subject to all the requirements and exemptions applicable to principal land uses requiring a conditional use permit as listed in (2) above. Additional regulations applicable to accessory land uses include the following:
(a)
Accessory uses or structures shall conform to the applicable regulations of the district in which it is located, except as specifically otherwise provided.
(b)
No accessory structure shall be constructed on any lot prior to establishment of an allowable principal structure, unless otherwise stated in this chapter.
(c)
With the exception of drainage structures, accessory structures shall not be located between a principal building and a street frontage on the same lot, nor within any required front yard.
(d)
In no instance shall an accessory structure, cellar, basement, tent, or recreational trailer be used as a residence.
(e)
Placement restrictions for residential districts. An accessory use or structure in a residential district may be established subject to the following regulation:
1.
Accessory buildings. No accessory building shall occupy any portion of the required front yard, and no accessory building shall occupy more than 30 percent of the required rear yard. Any accessory building, use or structure shall conform to the applicable regulations of the district in which it is located, except that when an accessory building is located forward of the rear building line of the principal building it shall satisfy the same side yard requirements as the principal building. An accessory building shall not be nearer than ten feet to the principal structure unless the applicable building code regulations in regard to one hour fire-resistive construction are complied with. In no event can the accessory uses or structures be forward of the front line of the principal structure.
(f)
Use restrictions for residential district. Accessory uses or structures in residential districts shall not involve the conduct of any business, trade or industry except for home occupations as defined herein and shall not be occupied as a dwelling unit.
(g)
Reversed corner lots. When an accessory structure is located on the rear of a reversed corner lot, it shall not be located beyond the front yard required on the adjacent interior lot to the rear, nor nearer than three feet to the side line of the adjacent structure.
(h)
Lawn accessories. Walks, drives, paved terraces and purely decorative garden accessories such as pools, fountains, statuary flag poles, etc., shall be permitted in setback areas but not closer than three feet to an abutting property line other than a street line.
(i)
Retaining walls. Retaining walls may be permitted anywhere on the lot, provided, however, that no individual wall shall exceed six feet in height, and a terrace of at least three feet in width shall be provided between any series of such walls.
(4)
Temporary land uses. Temporary uses are those uses that have the potential to create undesirable impacts on nearby properties if allowed to develop under the general requirements of this chapter. Therefore, temporary uses are permitted on a temporary basis subject to all the requirements applicable to uses permitted by right as listed in (1) above.
(5)
Classification of unlisted uses. Any use not specifically listed as a permitted use or a conditional use in the districts established in article II or the Table of Land Uses shall be considered prohibited except as may be otherwise specifically approved hereinafter. In case of question as to the classification of an unlisted use, the question shall require an interpretation per section 90-479.
(Ord. No. 13-005, § 1, 3-28-2013)
(Ord. No. 13-005, § 1, 3-28-2013; Ord. No. 21-02, § III, 8-26-2021)
The land use categories employed by this chapter are defined in this section. Land uses which are not listed in this chapter are not necessarily excluded from locating within any given zoning district. Section 90-479 empowers the zoning administrator to make interpretations on matters regarding specific land use proposals which are not addressed by this chapter.
(Ord. No. 13-005, § 1, 3-28-2013)
(1)
Single family. A single family dwelling unit consists of a fully detached single family residence designed to be occupied by not more than one family. This land use type has no roof, wall, or floor in common with any other dwelling unit. The dwelling unit must be a site built structure built in compliance with the State of Wisconsin Uniform Dwelling Code (UDC), or may be a manufactured dwelling (modular home) as permitted by the UDC or a manufactured home as permitted by the HUD code. Regulations for single family uses include the following:
(a)
The minimum gross floor area shall be 700 square feet, exclusive of an attached garage, carport, or open deck.
(b)
The dwelling must be attached to a finished, permanent foundation, such as a poured concrete slab or basement meeting UDC requirements.
(c)
The dwelling unit roof shall have a pitch of at least three feet in rise for every 12 feet in run, except by conditional use permit.
(d)
This dwelling unit type may not be split into two or more dwelling units, except for in-family suites (section 90-62(5)) meeting the requirements of this article.
(e)
Refer to the Building Code for the State of Wisconsin for specific information related to the minimum dwelling unit size and related requirements.
(f)
Minimum required parking: Two spaces.
(g)
In the A-1 Agriculture district, this dwelling unit type is only permitted for 35-acre lots or larger; a conditional use permit is required for lots smaller than 35 acres but larger than or equal to 40,000 square feet.
(h)
This following figure is intended to provide a graphic depiction of the setback and dimensional requirements for single family land uses. Specific requirements for single family uses can be found in article II under the density, intensity, and bulk requirements for each residential zoning district.
Key to Figure
A
Minimum lot width (at building minimum setback line)
B
Street setback (lot line to principal building or attached garage)
C
Corner lot (street side) setback (lot line to principal building or attached garage)
D
Side setback (lot line to principal building or attached garage)
E
Rear setback (lot line to principal building or attached garage)
F
Accessory building side and rear setback (lot line to accessory building)
G
Minimum pavement setbacks (lot line to pavement excluding driveways entrances, etc.)
(2)
Two-family. This dwelling unit type consists of a single structure with two separate residences, each having a private individual access, and no shared internal access. Two-family units can be constructed as attached side-by-side units (duplex or zero lot line construction) each with a ground floor and roof, or as a two-story structure (two-flat) with one unit above the other. Where side-by-side, each dwelling unit may share the same lot (duplex) or be located on a separate lot (zero lot line construction) per the applicable standards that follow. Regulations for two-family uses include the following:
(a)
The structure must be in compliance with the State of Wisconsin Uniform Dwelling Code (UDC).
(b)
A building code required fire rated wall must separate the two dwelling units from the lowest level floor to flush against the underside of the roof.
(c)
Each dwelling unit shall have separate water laterals and sanitary sewer connections, separately metered.
(d)
Refer to the Building Code for the State of Wisconsin for specific information related to the minimum dwelling unit size and related requirements.
(e)
Minimum required parking: Two spaces per residence.
(f)
In the R-T traditional neighborhood residential district, this dwelling unit type is only permitted as a two-flat; a conditional use permit is required for duplexes and zero lot line construction.
(g)
Construction and maintenance standards for zero lot line construction:
a.
Each dwelling unit shall be located on an individual lot.
b.
No dwelling unit can have more than one zero lot line (i.e., prohibiting townhomes and rowhouses).
c.
Patios and decks for zero lot line construction shall have zero lot line side yard setbacks except when such side yard is opposite the lot line that includes the common wall. All other yards shall be as required for zoning districts in which two-family uses are permitted.
d.
A zero lot line maintenance agreement or declaration, in a form acceptable to the zoning administrator and be recorded with the Columbia County Register of Deeds, shall be entered into by the owners of each dwelling unit specifying maintenance standards for the common wall (fire rated), maintenance and replacement standards for the exterior surfaces of the building, extending from the common wall between the lots outward, to maintain a neat and harmonious appearance of the building. The maintenance agreement shall provide that it may not be terminated or amended without the prior approval of the city council.
e.
Driveways may be separate or joint. If joint, the standards for the joint driveway shall be part of the zero lot line maintenance agreement or declaration.
(h)
This following figure is intended to provide a graphic depiction of the setback and dimensional requirements for duplex land uses. Specific requirements for duplexes and other two-family dwellings can be found in article II under the density, intensity, and bulk requirements for each residential zoning district.
Key to Figure
A
Minimum lot width (at building minimum setback line)
B
Street setback (lot line to principal building or attached garage)
C
Corner lot (street side) setback (lot line to principal building or attached garage)
D
Side setback (lot line to principal building or attached garage)
E
Rear setback (lot line to principal building or attached garage)
F
Accessory building side and rear setback (lot line to accessory building)
G
Minimum pavement setbacks (lot line to pavement excluding driveways entrances, etc.)
(3)
Townhouse. A single family dwelling unit, with a private entrance, which is part of a structure whose dwelling units are attached horizontally in a linear arrangement, and having a totally exposed front and rear wall. Regulations for townhouse uses include the following:
(a)
A building code required fire rated wall separating living areas from the lowest level through the roof is required between each dwelling unit.
(b)
Individual sanitary sewer and public water laterals are required between each dwelling unit.
(c)
No more than eight and no less than three townhouse dwelling units may be attached per group.
(d)
Townhouses may not be split into additional residences.
(e)
Refer to the Building Code for the State of Wisconsin for specific information related to the minimum dwelling unit size and related requirements.
(f)
Minimum required parking: Two spaces per residence.
(g)
In the R-4 Small-scale multi-family residential district, this dwelling unit type is only permitted for three- or four-unit buildings; a conditional use permit is required for five- to eight-unit buildings.
(h)
In the R-5 Large-scale multi-family residential district, this dwelling unit type is only permitted for up to eight-unit buildings.
(i)
This following figure is intended to provide a graphic depiction of the setback and dimensional requirements for townhouse land uses. Specific requirements for townhouses can be found in article II under the density, intensity, and bulk requirements for each residential zoning district.
Key to Figure
A
Minimum lot width (at building minimum setback line)
B
Street setback (lot line to principal building or attached garage)
C
Corner lot (street side) setback (lot line to principal building or attached garage)
D
Side setback (lot line to principal building or attached garage)
E
Rear setback (lot line to principal building or attached garage)
F
Accessory building side and rear setback (lot line to accessory building)
G
Minimum pavement setbacks (lot line to pavement excluding driveways entrances, etc.)
(4)
Multiplex. This dwelling unit type consists of an attached, multi-family residence which has a private, individual exterior entrance. Regulations for multiplex uses include the following:
(a)
A building code required fire rated wall separating living areas from the lowest level through the roof is required between each dwelling unit.
(b)
No more than 24 dwelling units may be attached per group.
(c)
All multiplex units within a development shall be located a minimum of 30 feet from the boundary of the development.
(d)
Refer to the building code for the State of Wisconsin for specific information related to the minimum dwelling unit size and related requirements.
(e)
Minimum required parking: One space per residence.
(f)
In the R-4 Small-scale multi-family residential district, this dwelling unit type is only permitted for three- or four-unit buildings; a conditional use permit is required for five- to eight-unit buildings.
(g)
In the R-5 Large-scale multi-family residential district, this dwelling unit type is only permitted up to a 12-unit building; a conditional use permit is required for 13- to 24-unit buildings.
(h)
This following figure is intended to provide a graphic depiction of the setback and dimensional requirements for multiplex land uses. Specific requirements for multiplexes can be found in article II under the density, intensity, and bulk requirements for each residential zoning district.
Key to Figure
A
Minimum lot width (at building minimum setback line)
B
Street setback (lot line to principal building or attached garage)
C
Corner lot (street side) setback (lot line to principal building or attached garage)
D
Side setback (lot line to principal building or attached garage)
E
Rear setback (lot line to principal building or attached garage)
F
Accessory building side and rear setback (lot line to accessory building)
G
Minimum pavement setbacks (lot line to pavement excluding driveways entrances, etc.)
(5)
Apartment. This dwelling unit type consists of an attached, multi-family residence which takes access from a shared entrance or hallway. Regulations for apartment uses include the following:
(a)
A building code required fire rated wall separating living areas from the lowest level to the underside of the roof is required between each dwelling unit.
(b)
No less than three dwelling units may be located in a building.
(c)
As part of the conditional use requirement for group developments (section 90-64), any development comprised of one or more buildings which contain five or more dwelling units shall provide additional site design features such as: underground parking, architectural elements, landscaping, and/or on-site recreational facilities.
(d)
Refer to the Building Code for the State of Wisconsin for specific information related to the minimum dwelling unit size and related requirements.
(e)
Minimum required parking: One space per residence.
(f)
In the R-4 Small-scale multi-family residential district, this dwelling unit type is only permitted for 3- or 4-unit buildings; a conditional use permit is required for 5- to 8-unit buildings.
(g)
In the R-5 Large-scale multi-family residential district, this dwelling unit type is only permitted up to a 12-unit building; a conditional use permit is required for 13- to 24-unit buildings.
(h)
This following figure is intended to provide a graphic depiction of the setback and dimensional requirements for apartment land uses. Specific requirements for apartments can be found in Article II under the density, intensity, and bulk requirements for each residential zoning district.
Key to Figure
A
Minimum lot width (at building minimum setback line)
C
Minimum street frontage
D
Corner lot (street side) setback (lot line to principal building or attached garage)
F
Side setback (lot line to principal building or attached garage)
H
Rear setback (lot line to principal building or attached garage)
J
Accessory building side and rear setback (lot line to accessory building)
L
Minimum pavement setbacks (lot line to pavement excluding driveways entrances, etc.)
P
Minimum required parking
(6)
Mobile home. A dwelling unit type consisting of a fully detached, single family residence, which has not received a Federal Manufactured Housing Certificate. Regulations for mobile home uses include the following:
(a)
No mobile home may be split into two or more residences.
(b)
Within 60 days of placement on the site, the owner shall remove the axle and install foundation siding. Foundation siding means a fire and weather resistant, pre-finished material surrounding the entire perimeter of a home and completely enclosing a space between the exterior wall of such home and the ground. Foundation siding shall be properly vented, harmonious, and compatible with the house. Areas enclosed by such foundation siding shall be maintained free of rodents and fire hazards.
(c)
Storage under mobile homes is prohibited.
(d)
Mobile homes shall adhere to all additional regulations listed in section 90-32.
(e)
Minimum required parking: Two spaces per mobile home.
(Ord. No. 13-005, § 1, 3-28-2013; Ord. No. 21-02, § IV, 8-26-2021; Ord. No. 22-006, 6-9-2022)
(1)
Cultivation. Cultivation includes all operations primarily oriented to the on-site, outdoor raising of plants for commercial purposes. This land use includes trees which are raised as a crop to be replaced with more trees after harvesting, such as in nursery or Christmas tree operations. Regulations for cultivation uses include the following:
(a)
On buildable lots in non-agricultural zoning districts which are platted in final form and served by improved streets and utilities, cultivation is not permitted except as a conditional use or legal non-conforming use.
(b)
Once discontinued for a period of 12 months, cultivation uses may only be re-established in the A-1 agricultural district or with the granting of a conditional use permit and approval of a plan of operation. The plan of operation shall list any chemicals that are proposed to be used and describe the proposed time of operation any and all farming activities involving mechanized equipment, including the earlier and latest times during the day and likely months.
(c)
Minimum required parking: None.
(2)
On-site agricultural retail. This land use is associated with the sale of agricultural products grown exclusively on-site. The sale of products grown or otherwise produced off-site shall not be permitted within on-site agricultural retail operations and such activity constitutes retail sales as a commercial land use. Packaging and equipment used to store, display, package, or carry products for the convenience of the operation or its customers (such as egg cartons, baskets, containers, and bags) shall be produced off-site. Regulations for on-site agricultural retail uses include the following:
(a)
Structures or groups of structures used for on-site agricultural retail shall not exceed 500 square feet in floor area or 12 feet in height.
(b)
Signage shall be limited to one on-site sign which shall not exceed 30 square feet in area.
(c)
Such land use shall be served by no more than one driveway. Said driveway shall require a valid driveway permit.
(d)
Said structure and fencing shall be located a minimum of 300 feet from any residentially zoned property.
(e)
Once discontinued for a period of 12 months, on-site agricultural retail uses may only be reestablished in the A-1 Agricultural District or with the granting of a conditional use permit.
(f)
Minimum required parking: One space per employee on the largest work shift, four spaces for customers, and one space for every 200 square feet of product display area.
(3)
Husbandry. Operations primarily oriented to the on-site raising and/or use of animals at an intensity of one animal unit or less per acre, including apiaries and dairying operations. Regulations for husbandry uses include the following:
(a)
Any building housing animals shall be located a minimum of 300 feet from any residentially zoned property, and 100 feet from all other lot lines.
(b)
All outdoor animal containments (pastures, pens, and similar areas) shall be located a minimum of ten feet from any residentially zoned property.
(c)
Once discontinued for a period of 12 months, husbandry uses may only be re-established in the A-1 agricultural district or with the granting of a conditional use permit.
(d)
Minimum required parking: One space per employee on the largest work shift.
(4)
Intensive agriculture. Operations primarily, oriented to the on-site raising and/or use of animals at an intensity equal to or exceeding one animal unit per acre and/or agricultural activities requiring large investments in structures. Examples of such land uses include feed lots, hog farms, poultry operations, fish farms, and certain other operations meeting this criterion. Regulations for intensive agricultural uses include the following:
(a)
Such land uses shall not be located in or adjacent to an existing or platted residential subdivision.
(b)
Such land uses shall be completely surrounded by a landscaped buffer approved by the plan commission with a minimum intensity of 1.00.
(c)
All buildings, structures, outdoor storage areas, and outdoor animal containments (pastures, pens and similar areas) shall be located a minimum of 300 feet from all residentially zoned property and 100 feet from all other lot lines.
(d)
Such land uses shall be located in an area which is planned to remain commercially viable for agricultural land uses.
(e)
Once discontinued for a period of 12 months, intensive agricultural uses may only be reestablished in the A-1 agricultural district or with the granting of a conditional use permit except.
(f)
Minimum required parking: One space per employee on the largest work shift.
(5)
Agricultural service. Agricultural service land uses include all operations pertaining to the sale, handling, transport, packaging, storage, or disposal of agricultural equipment, products, by-products, or materials primarily used by agricultural operations. Examples of such land uses include agricultural implement sales, storage, or repair operations; feed and seed stores; agricultural chemical dealers and/or storage facilities; animal feed storage facilities; commercial dairies; food processing facilities; canning and other packaging facilities; and agricultural waste disposal facilities, except composting uses. Regulations for agricultural service uses include the following:
(a)
Such land uses shall not be located in or adjacent to an existing or platted residential subdivision.
(b)
All buildings, structures, outdoor storage areas, and outdoor animal containments (pastures, pens and similar areas) shall be located a minimum of 100 feet from all lot lines.
(c)
If within the A-1 agricultural district, shall be located in an area which is planned to remain commercially viable for agricultural land uses.
(d)
Once discontinued for a period of 12 months, intensive agricultural uses may only be re-established in the A-1 agricultural, M-1 industrial, M-2 heavy industrial, and M-3 interchange industrial districts with the granting of a conditional use permit.
(e)
Minimum required parking: N/A.
(6)
Commercial greenhouse. Retail businesses whose principal activity is the selling of flowers, shrubbery, vegetables, and trees grown on site and having outside storage and display. Regulations for commercial greenhouse uses include the following:
(a)
Such land uses shall not be located in an existing or platted residential subdivision.
(b)
All buildings, structures, and outdoor storage areas shall be located a minimum of 100 feet from all residentially zoned property.
(c)
Minimum required parking: One space per 300 square feet of gross floor area located within a permanent structure on the site plus one space per 1,000 square feet of gross floor area for all area within greenhouse structures.
(7)
Community garden. An area for cultivation and related activities divided into one or more plots to be cultivated by more than one operator or member. These areas may be on public or private lands. Regulations for community gardens include the following:
(a)
All activity areas and structures shall comply with the required setbacks and height regulations for principal structures within the zoning district.
(b)
Submittal of a site plan to the zoning administrator is required. The site plan submittal shall include the property owner, established sponsoring organization, and garden manager. The site plan shall also demonstrate consideration for and indicate the locations of structures, storage, access for deliveries and pickups, water availability, shaded rest area, and availability of public parking.
(c)
The following structures are permitted: tool sheds, shade pavilions, barns, rest-room facilities with composting toilets, and planting preparation houses, benches, bike racks, raised/accessible planting beds, compost bins, picnic tables, seasonal farm stands, fences, garden art, rain barrel systems, beehives, and children's play areas.
(d)
Signs shall be limited to identification, information, and directional signs, including sponsorship information where the sponsorship information is clearly secondary to other permitted information on any particular sign and shall not exceed a total aggregate area of 48 square feet.
(e)
Fences shall comply with the regulations in section 90-121, except that chicken wire, woven wire, and related garden fencing shall be permitted without restriction around and within cultivated areas.
(f)
Minimum required parking: N/A.
(8)
Market garden. An area for cultivation and related activities divided into one or more plots to be cultivated by more than one operator or member. These areas may be on public or private lands, with on-site sales of crops grown on-site. Regulations for market gardens include the following:
(a)
All activity areas and structures shall comply with the required setbacks and height regulations for principal structures within the zoning district.
(b)
Submittal of a site plan to the zoning administrator is required. The site plan submittal shall include the property owner, established sponsoring organization, and garden manager. The site plan shall also demonstrate consideration for and indicate the locations of structures, storage, access for deliveries and pickups, water availability, shaded rest area, and availability of public parking.
(c)
The following structures are permitted: tool sheds, shade pavilions, barns, rest-room facilities with composting toilets, and planting preparation houses, benches, bike racks, raised/accessible planting beds, compost bins, picnic tables, seasonal farm stands, fences, garden art, rain barrel systems, beehives, and children's play areas.
(d)
Seasonal farm stands shall be removed from the premises or stored inside a building on the premises during that time of the year when the garden is not open for public use.
(e)
Signs shall be limited to identification, information, and directional signs, including sponsorship information where the sponsorship information is clearly secondary to other permitted information on any particular sign and shall not exceed a total aggregate area of 48 square feet.
(f)
Fences shall comply with the regulations in section 90-121, except that chicken wire, woven wire, and related garden fencing shall be permitted without restriction around and within cultivated areas.
(g)
Minimum required parking: N/A.
(Ord. No. 13-005, § 1, 3-28-2013; Ord. No. 21-02, § IV, 8-26-2021)
(1)
Active outdoor public recreation. Outdoor recreational uses located on public property (including school district property) which involves active recreational activities. Such land uses include play courts (i.e. tennis and basketball courts), playfields (i.e. ball diamonds, football fields, and soccer fields), tot lots, outdoor swimming pools, swimming beach areas, fitness courses, public golf courses, and similar land uses. Regulations for active outdoor public recreation land uses include the following:
(a)
Facilities using night lighting and adjacent to residentially zoned property shall install a landscaped buffer with a minimum opacity of 0.60.
(b)
All structures and active recreational areas shall be located a minimum of 50 feet from any residentially zoned property.
(c)
Facilities which serve a regional or community-wide function shall provide off-street passenger loading area if the majority of the users will be children.
(d)
Minimum required parking: One space per four expected patrons at maximum capacity for any use requiring over five spaces.
(2)
Passive outdoor public recreation. Recreational land uses located on public property which involve passive recreational activities, such as arboretums, natural areas, wildlife areas, hiking trails, bike trails, cross country ski trails, horse trails, open grassed areas not associated with any particular active recreational land use (see (1) above), picnic areas, picnic shelters, gardens, fishing areas, and similar land uses. Regulations for a passive outdoor public recreation land uses include the following:
(a)
Minimum required parking: One space per four expected patrons at maximum capacity for any use requiring over five spaces.
(3)
Indoor institutional. All indoor public and not for profit recreational facilities (i.e. gyms, swimming pools, libraries, museums, and community centers), funeral homes, schools, churches, nonprofit clubs, nonprofit fraternal organizations, convention centers, hospitals, jails, prisons, and similar land uses. Regulations for indoor institutional land uses include the following:
(a)
An off-street passenger loading area shall be provided if the majority of the users will be children (as in the case of a school, church, library, or similar land use).
(b)
All structures shall be located a minimum of 50 feet from any residentially zoned property.
(c)
Minimum required parking: Generally, one space per three expected patrons at maximum capacity. However, see additional specific requirements below:
1.
Church: One space per five seats at the maximum capacity.
2.
Community or recreation center: One space per 300 square feet of gross floor area, or one space per four patrons to the maximum capacity, whichever is greater, plus one space per employee on the largest work shift.
3.
Funeral home: One space per three patron seats at the maximum capacity, plus one space per employee on the largest work shift.
4.
Hospital: One space per two patient beds, plus one space per staff doctor and one space per two employees on the largest work shift.
5.
Library or museum: One space per 300 square feet of gross floor area or one space per four seats to the maximum capacity, whichever is greater, plus one space per employee on the largest work shift.
6.
Elementary and junior high: One space per two employees.
7.
Senior high: One space per two employees, plus 30 percent of maximum capacity.
8.
College or trade school: One space per staff member on the largest work shift, plus one space per two students of the largest class attendance period.
(4)
Outdoor institutional. Privately held outdoor institutional uses, such as cemeteries, country clubs, golf courses, and similar land uses. Regulations for outdoor institutional land uses include the following:
(a)
An off-street passenger loading area shall be provided if a significant proportion of the users will be children.
(b)
All structures and actively used outdoor recreational areas shall be located a minimum of 50 feet from any residentially zoned property.
(c)
Facilities using night lighting and adjacent to residentially zoned property shall install a landscaped buffer with a minimum opacity of 0.60.
(d)
Minimum required parking: Generally, one space per three expected patrons at maximum capacity; otherwise, the following parking requirements apply:
1.
Cemetery: One space per employee, plus one space per three patrons to the maximum capacity of all indoor assembly areas.
2.
Golf course: Thirty-six spaces per nine holes, plus one space per employee on the largest work shift, plus 50 percent of spaces otherwise required for any accessory uses (e.g., bars, restaurants).
3.
Swimming pool: One space per 30 percent of capacity in persons.
4.
Tennis court: Three spaces per court.
(5)
Community living arrangement. Defined by statutes as places where five or more adults who are not related to the operator or administrator and who do not require care above intermediate level nursing care reside and receive care, treatment or services that are above the level of room and board but that include no more than three hours of nursing care per week per resident. Regulations for community living arrangements include the following:
(a)
Community living arrangement land uses include all facilities provided for in Wis. Stats. § 46.03(22), including child welfare agencies, group homes for children, foster homes, treatment foster homes, adult family homes, and community based residential facilities. Community living arrangements do not include in-home daycare centers (section 90-62(10), (11)) or group daycare centers (section 90-58(5)); nursing homes (section 90-57(6)); general hospitals, special hospitals, prisons, or jails (section 90-57(3)). Community living arrangement facilities are regulated depending upon their capacity as provided for in Wis. Stats. § 62.23(7)(i), provided any such regulations do not violate federal or state housing or anti-discrimination laws.
(b)
No community living arrangement shall be established within 2,500 feet of any other such facility regardless of its capacity unless planning commission and common council agree to a reduction in spacing.
(c)
The applicant shall demonstrate that the total capacity of all community living arrangements (of all capacities) in the city shall not exceed one percent of the city's population (unless specifically authorized by the common council following a public hearing).
(d)
Foster homes housing six or fewer children and licensed under Wis. Stats. § 48.62 shall not be subject to (a), above; and shall not be subject to, or count toward, the total arrived at in (b), above.
(e)
Minimum required parking: Three spaces.
(f)
In the R-T traditional neighborhood, R-1 single-family residential, and R-2 single-family residential districts, only community living arrangements with one to eight residents are permitted; a conditional use permit is required for community living arrangements with nine to 15 residents.
(g)
In the R-3 single-family and two-family residential, R-4 small-scale multi-family residential, and R-5 large-scale multi-family residential districts, only community living arrangements with one to 15 residents are permitted; a conditional use permit is required for community living arrangements with more than 15 residents.
(6)
Institutional residential. A form of residential development designed to accommodate institutional residential land uses, such as senior housing, retirement homes, assisted living facility, nursing homes, hospices, group homes, convents, monasteries, dormitories, convalescent homes, limited care facilities, rehabilitation centers, and similar land uses not considered to be community living arrangements under the provisions of Wis. Stats. § 62.23. Regulations for institutional residential uses include the following:
(a)
No individual lots are required although the development shall contain a minimum of 800 square feet of gross site area for each occupant of the development.
(b)
A minimum of 30 percent of the development's gross site area shall be held as permanently protected green space.
(c)
Project shall provide an off-street passenger loading area at a minimum of one location within the development.
(d)
Minimum required parking:
1.
Senior housing or retirement housing: One-half space per dwelling unit.
2.
Assisted living facility or limited care facility: One space per two dwelling units.
3.
Monastery, convent or dormitory: One space per six residents, plus one space per employee on the largest work shift, plus one space per five chapel seats if the public may attend.
4.
Nursing home or hospice: One space per four patient beds, plus one space per two employees on the largest work shift, plus one space per doctor.
(7)
Public services and utilities. All city, county, state, and federal facilities (except those otherwise treated in this section), emergency service facilities (i.e. fire departments and rescue operations), wastewater treatment plants, public and/or private utility substations, water towers, utility and public service related distribution facilities, and similar land uses. Regulations for public services and utilities include the following:
(a)
Outdoor storage areas shall be located a minimum of 50 feet from any residentially zoned property.
(b)
All outdoor storage areas adjoining a residentially zoned property shall install a landscaped buffer with a minimum opacity of 0.60.
(c)
All structures shall be located a minimum of 20 feet from any residentially zoned property.
(d)
The exterior of all buildings shall be compatible with the exteriors of surrounding buildings.
(e)
Minimum required parking: One space per employee on the largest work shift, plus one space per company vehicle normally stored or parked on the premises, plus one space per 500 square feet of gross square feet of office area.
(8)
Signal antenna.
(a)
This subsection regulating the placement of signal antennas is adopted to:
1.
Provide uniform regulation of all signal antenna devices;
2.
Secure placement of such antennas in an aesthetically sensitive manner while allowing users reasonable reception of signals;
3.
Protect the public from injury from antennas that are inadequately mounted, unduly susceptible to wind pressure, improperly installed and wired, or are placed on structures insufficiently designed or constructed to safely support the antenna; and
4.
Provide for placement of such antennas in locations that preserve access to rear property areas by firefighting apparatus and emergency personnel.
(b)
Building permit required. No owner shall, within the city, build, construct, use or place any type of signal tower until a permit shall have first been obtained from the zoning administrator.
(c)
Definitions. For purposes of this section, the following definitions shall apply:
1.
Signal antenna means any outdoor apparatus capable of receiving and/or sending communications. This definition includes all types of signal antennas, including, without limitation, parabolic antennas, home earth stations, satellite television disks, UHF and VHF television antennas, and AM, FM, ham and shortwave radio antennas, and cellular antenna rays regardless of the method of mounting.
2.
Owner means the holder of record of an estate in possession in fee simple, or for life, in land or real property, or a vendee of record under a land contract for the sale of an estate in possession in fee simple or for life but does not include the vendor under a land contract. A tenant in common or joint tenant shall be considered such owner to the extent of his interest. The personal representative of at least one owner shall be considered an owner.
(d)
Application. Application for all nonresidential signal antenna permit shall be made in writing to the department of public works. With such application, there shall be submitted a fee as set forth in the official city fee schedule on file in the city clerk's office and a sufficient set of mounting plans and specifications, including a general plot plan showing the location of the proposed signal antenna with respect to streets, lot lines and buildings. If such application meets all requirements of this section, the application shall be approved by the plan commission.
(e)
Installation standards. Signal antennas installed in any zoning district within the city shall comply with the following provisions:
1.
Number of units. Not more than one satellite earth station less than or equal to 24 inches in diameter may be allowed per individual recorded lot except additional stations may be permitted upon application for a variance in nonresidential zones.
2.
Location and setbacks. All earth stations shall comply with the setback requirements for primary structures as specified in the zoning district where the earth station is located.
3.
Size and height. The diameter of a residential signal antenna shall not exceed 24 inches and/or exceed height requirements in the applicable zoning district. All nonresidential signal antennas shall be of a size and height approved by the plan commission.
4.
Wind pressure. All signal antennas shall be permanently mounted in accordance with the manufacturer's specifications for installation. All such installations shall meet a minimum wind load design velocity of 90 miles per hour.
5.
Electrical installations. Electrical installations in connection with signal antennas, including grounding of the system, shall be in accordance with the National Electrical Safety Code, Wisconsin State Electrical Code (Wis. Admin. Code ch. SPS 316) and the instructions of the manufacturer. In cases of conflict, the stricter requirements shall govern. All cable used to conduct current or signals from the signal antenna to the receivers shall be installed underground unless installation site conditions preclude underground. If a signal antenna is to be used by two or more residential property owners, all interconnecting electrical connections, cables and conduits must also be buried. The location of all such underground lines, cables and conduits shall be shown on the application for a permit. All signal antennas shall be grounded against direct lightning strikes.
6.
Temporary placement. No portable or trailer-mounted signal antenna shall be allowed, except for temporary installation for on-site testing and demonstration purposes for periods not exceeding ten days in a calendar year. However, such trial placement shall be in accordance with all provisions of this section. Failure to comply shall result in a citation being issued for violation of this section. Any person making such temporary placement shall first give written notice to the department of public works of the date when such placement shall begin and end. There shall be no permit fee for temporary placement.
7.
Advertising. No form of advertising or identification, sign or mural is allowed on the signal antenna other than the customary manufacturer's identification plates.
8.
Interference with broadcasting. Signal antennas shall be filtered and/or shielded so as to prevent the emission or reflection of an electro-magnetic radiation that would cause any harmful interference with the radio and/or television broadcasting or reception on adjacent properties. In the event that harmful interference is caused subsequent to its installation, the owner of the signal receiving antenna shall promptly take steps to eliminate the harmful interference in accordance with Federal Communications Commission regulations.
9.
Compliance with federal regulations. The installation and use of every signal antenna shall be in conformity with the Federal Cable Communications Policy Act of 1984 (47 USC 521 et seq.) and regulations adopted there under.
10.
Aesthetic considerations. Signal antennas shall be located and designed to reasonably reduce visual impact from surrounding properties at street level. The color of any satellite dish shall be such that it blends into its surroundings and shall be approved by the department of public works as part of the application.
(f)
Variances. Requests for variances from the standards established by this section may be made to the board of appeals pursuant to section 90-64.
(g)
Enforcement.
1.
It shall be unlawful to construct, use, build or locate any signal antenna in violation of any provisions of this section. In the event of any violation, the common council or any property owner who would be specifically damaged by such violation may institute appropriate action or proceedings to enjoin a violation of this section.
2.
Any person, firm or corporation who fails to comply with the provisions of this section shall, upon conviction, be subject to the general penalty found in section 1-15.
(Ord. No. 13-005, § 1, 3-28-2013; Ord. No. 21-02, § IV, 8-26-2021; Ord. No. 21-04, § III, 7-22-2021)
(1)
Office. Indoor land uses where the primary function is the handling of information or administrative services. Such land uses do not typically provide services directly to customers on a walk-in or on-appointment basis. Regulations for offices include the following:
(a)
Minimum required parking: One space per 300 square feet of gross floor area.
(2)
Indoor sales or service. Display and sales or rental of merchandise or equipment, or non-personal or non-professional services, entirely within an enclosed building. This includes self-service facilities such as coin-operated laundromats. Display of products outside of an enclosed building is considered "incidental outdoor display" (see subsection 90-62(15)). A land use which contains both indoor sales and outdoor sales exceeding 15 percent of the total sales area of the building(s) on the property shall be considered as "outdoor display" (see subsection 90-58(10)). Regulations for indoor sales or service uses include the following:
(a)
Minimum required parking: One space per 300 square feet of gross floor area.
(3)
Personal or professional service. Indoor land uses where the primary function is the provision of services directly to an individual on a walk-in or on-appointment basis. Examples include but are not limited to insurance or financial services, realty offices, hospitals, medical offices and clinics, veterinary clinics, barber shops, beauty shops, and related land uses. Regulations for personal or professional service uses include the following:
(a)
Minimum required parking: One space per 300 square feet of gross floor area.
(4)
Indoor maintenance service. Land uses where maintenance services (including repair) are performed and contain all operations (except loading) entirely within an enclosed building. Because of outdoor vehicle storage requirements, vehicle repair and maintenance is considered a vehicle repair and maintenance land use. Regulations for indoor maintenance service uses include the following:
(a)
Minimum required parking: One space per 300 square feet of gross floor area.
(5)
Group daycare. Group daycare centers are land uses in which qualified persons provide childcare services, such as daycare centers and nursery schools. Such land uses may be operated on a for-profit or a not-for-profit basis. Such land uses may be operated in conjunction with another principal land use on the same environs, such as a church, school, business, or civic organization. In such instances, group daycare centers are not considered an accessory uses and therefore require review as a separate land use. Regulations for group daycare uses include the following:
(a)
Group daycare centers shall not be located within a residential building.
(b)
Facility shall provide a landscaped buffer with a minimum opacity of 0.50 along all property borders abutting residentially zoned property.
(c)
Property owner's permission is required as part of the conditional use permit application.
(d)
Minimum required parking: One space per five students plus one space for each employee on the largest work shift.
(6)
Artisan studio. A building or portion thereof used for the preparation, display, and sale of individually crafted artwork, jewelry, furniture, sculpture, pottery, leather craft, hand-woven articles, and related items, as either a principal use or accessory use. Regulations for artisan studios include the following:
(a)
Facility shall provide a landscaped buffer with a minimum opacity of 0.60 along all property borders abutting residentially zoned property.
(b)
Minimum required parking: One space per 300 square feet of gross floor area. Adequate on-site parking is required for all customer and employee vehicles.
(7)
Indoor commercial entertainment. Land uses which provide entertainment services entirely within an enclosed building. Such activities often have operating hours which extend significantly later than most other commercial land uses. Examples of such land uses include restaurants, taverns, theaters, health or fitness centers, all forms of training studios (dance, art, martial arts, etc.), bowling alleys, arcades, roller rinks, and pool halls. Regulations for indoor commercial entertainment uses include the following:
(a)
If located on the same side of the building as abutting residentially zoned property, no customer entrance of any kind shall be permitted within 150 feet, or as far as possible, of a residentially zoned property.
(b)
Facility shall provide a landscaped buffer with minimum opacity of 0.60 along all borders of the property abutting residentially zoned property.
(c)
Minimum required parking: One space per every three patron seats or lockers (whichever is greater); or one space per three persons at the maximum capacity of the establishment (whichever is greater).
(8)
Outdoor commercial entertainment. Land uses which provide entertainment services partially or wholly outside of an enclosed building. Such activities often have the potential to be associated with nuisances related to noise, lighting, dust, trash, and late operating hours. Examples of such land uses include outdoor commercial swimming pools, driving ranges, miniature golf facilities, amusement parks, drive-in theaters, go-cart tracks, and racetracks. Regulations for outdoor commercial entertainment uses include the following:
(a)
Activity areas shall not be located closer than 300 feet to a residentially zoned property.
(b)
Facility shall provide a landscaped buffer with minimum opacity of 0.80 along all borders of the property abutting residentially zoned property.
(c)
Activity areas (including drive-in movie screens) shall not be visible from any residentially zoned property.
(d)
Minimum required parking: One space for every three persons at the maximum capacity of the establishment.
(9)
Drive-through sales or service. Land uses which perform sales and/or services to persons in vehicles, or to vehicles which may or may not be occupied at the time of such activity (except vehicle repair and maintenance). Such land uses often have traffic volumes which exhibit their highest levels concurrent with peak traffic flows on adjacent roads. Examples include drive-in, drive-up, and drive-through facilities, vehicular fuel stations, and all forms of car washes. If performed in conjunction with a principal land use (e.g., a convenience store, restaurant, or bank), drive-through sales or service land uses shall be considered an accessory use. Regulations for drive-through sales or service uses include the following:
(a)
Clearly marked pedestrian crosswalks shall be provided for each walk-in customer access to the facility adjacent to the drive-through lane(s).
(b)
The drive-through facility shall be designed so as to not impede or impair vehicular and pedestrian traffic movement or exacerbate the potential for pedestrian/vehicular conflicts.
(c)
In no instance shall a drive-through facility be permitted to operate which endangers the public safety, even if such land use has been permitted under the provisions of this section.
(d)
The setback of any overhead canopy or similar structure shall be a minimum of ten feet from all street rights-of-way lines, a minimum of 20 feet from all residentially zoned property lines, and shall be a minimum of five feet from all other property lines. The total height of any overhead canopy or similar structure shall not exceed 20 feet per the measurement of roof height.
(e)
All vehicular areas of the facility shall provide a surface paved with concrete or bituminous material which is designed to meet the requirements of a minimum four-ton axle load.
(f)
Facility shall provide a landscaped buffer with a minimum opacity of 0.60 along all property borders abutting residentially zoned property.
(g)
Interior curbs shall be used to separate driving areas from exterior fixtures such as fuel pumps, vacuums, menu boards, canopy supports, and landscaped islands. Said curbs shall be a minimum of six inches high and be of a non-mountable design. No curb protecting an exterior fixture shall be located closer than 25 feet to all property lines.
(h)
Any text or logo larger than one square foot per side on an overhead canopy or other accessory structure shall be considered a freestanding sign subject to regulation under article IX of this chapter.
(i)
Minimum required parking: Refer to the parking requirements of the other land use activities on the site (i.e. indoor sales and service for a gas station/convenience store, or office for a bank). Each drive-up lane shall have a minimum stacking length of 100 feet behind the pass through window and 40 feet beyond the pass through window. This requirement may be adjusted by the Plan Commission through the conditional use process.
(10)
Outdoor display. Display and sales or rental of merchandise or equipment outside of an enclosed building. Examples include manufactured and mobile housing sales, monument sales, outdoor garden center, and outdoor recreation equipment sales. Such land uses do not include vehicles sales (see subsection 90-58(17)) the storage or display of inoperative vehicles or equipment, or other materials typically associated with a junkyard or salvage yard (see subsection 90-59(4)). If a land use displays for sale or rent only a limited amount of product outside of an enclosed building, such use may instead be considered incidental to indoor sales under subsection 90-62(13). Regulations for outdoor display uses include the following:
(a)
The area of outdoor sales shall be calculated as the area which would be enclosed by a required physical separation installed and continually maintained in the most efficient manner which completely encloses all materials displayed outdoors.
(b)
The display of items shall not be permitted in required landscaped areas, bufferyards, or setback areas for the principal structure.
(c)
In no event shall the display of items reduce or inhibit the use or number of parking stalls provided on the property below the requirement established by (i), below. If the number of provided parking stalls on the property is already less than the requirement, such display area shall not further reduce the number of parking stalls already present.
(d)
Display areas shall be separated from any circulation area by a minimum of ten feet. This separation shall be clearly delimited by a physical separation such as a greenway, curb, fence, line of planters, or by a clearly marked paved area.
(e)
Signs, screening, enclosures, landscaping, or materials being displayed shall not interfere in any manner with either on-site or off-site traffic visibility, including potential traffic/traffic and traffic/pedestrian conflicts.
(f)
Outdoor display shall be permitted during the entire calendar year, however, if goods are removed from the display area all support fixtures used to display the goods shall be removed within ten calendar days of the goods' removal.
(g)
Inoperative vehicles or equipment, or other items typically stored or displayed in a junkyard or salvage yard, shall not be displayed for this land use.
(h)
Facility shall provide a landscaped buffer with a minimum opacity of 0.60 along all borders of the display area abutting residentially zoned property.
(i)
Minimum required parking: One space per 300 square feet of gross floor area.
(11)
Outdoor maintenance service. Land uses where maintenance services, including repair, are performed and have all or any portion of their operations located outside of an enclosed building. Regulations for outdoor maintenance service uses include the following:
(a)
All outdoor activity areas shall be completely enclosed by a minimum six feet high fence. Such enclosure shall be located a minimum of 50 feet from any residentially zoned property
(b)
Facility shall provide a landscaped buffer with a minimum opacity of 0.60 along all borders of the display area abutting residentially zoned property.
(c)
Minimum required parking: One space per 300 square feet of gross floor area, or one space per each employee on the largest shift, whichever is less.
(12)
Tourist rooming houses (TRH). Places of lodging, other than commercial indoor lodging, boarding houses, or bed and breakfast establishments, in which sleeping accommodations are offered for pay to tourists or transients for short-term stays. Regulations for tourist rooming houses include the following:
(a)
Definitions:
(1)
Tourist or transient: A person who travels to a location away from his or her permanent address for a short period of time, not to exceed 30 days for vacation, pleasure, recreation, culture, business or employment
(2)
Short-term stay: A period of 30 days or less.
(3)
Operator: A person who is the owner or lessee of property being used as a TRH and who is conducting the TRH business, among other things, interacting digitally and in person with guests and is identified in the TRH listing and advertisements as the TRH "host."
(b)
Zoning and occupancy permit: All tourist rooming house operators must obtain a zoning and occupancy permit from the City of Portage.
(c)
Notice filing: All tourist rooming house operators must provide an annual notice filing with the Portage City Clerk, unless a TRH license has been obtained in accordance with (d)(2) below.
(d)
Licenses: An operator must hold the following non-expired licenses if the tourist rooming house is rented for more than ten days in any 365-day period:
(1)
A license from the Wisconsin Department of Agriculture, Trade and Consumer Protection (DATCP) for a tourist rooming house.
(2)
A license from the City of Portage to operate a tourist rooming house.
(e)
Maximum days of operation per year: Tourist rooming houses may only be rented for a total of 180 days or less within any consecutive 365-day period.
(f)
Minimum rental period: Tourist rooming houses must be rented to tourist or transients for a minimum of two days.
(g)
The sale of alcoholic beverages of any kind is prohibited on the premises.
(h)
Minimum required parking: with the exception tourist rooming houses located in the B-2 Downtown District, all tourist rooming houses must have at least one off-street parking space for every two guests.
(i)
Each operator shall keep a list of names of all persons staying at the tourist rooming house. This list shall be kept on file for a period of one year. Such list shall be available for inspection by city officials at any time.
(13)
Bed and breakfast. Places of lodging that provide rooms for rent, are the owner's personal residence, and are occupied by the owner at the time of rental. Regulations for bed and breakfast uses include the following:
(a)
Zoning and occupancy permit: All bed and breakfast establishments must obtain a zoning and occupancy permit from the City of Portage.
(b)
Licenses: Owner must hold the following non-expired licenses:
(1)
A license from the Wisconsin Department of Agriculture, Trade and Consumer Protection (DATCP) for a bed and breakfast.
(2)
A license from the City of Portage to operate a bed and breakfast.
(c)
If alcoholic beverages of any kind are to be served on the premises, the owner of the establishment shall first obtain the appropriate license in accordance with the city and state regulations.
(d)
One sign, with a maximum area of 20 square feet, shall be permitted on the property.
(e)
Facility shall provide a landscaped buffer with a minimum opacity of 0.60 along all property boarder abutting residentially zoned property.
(f)
No premises shall be utilized for a bed and breakfast operation unless there are at least two exits to the outdoors from such premises.
(g)
Only the meal of breakfast shall be served to overnight guests. Breakfast may be served anytime between 6:00 a.m. and 12:00 p.m.
(h)
Maximum stay: The maximum stay for any occupants of a bed and breakfast operation shall be 14 days.
(i)
Minimum required parking: One space per bedroom in addition to the requirements for principal residents.
(14)
Commercial indoor lodging. Facilities that provide overnight housing in individual rooms or suites with each room or suite having a private bathroom. Such land uses may provide in-room or in-suite kitchens, and may also provide indoor recreational facilities for the exclusive use of their customers. Restaurant, arcades, fitness centers, and other on-site facilities available to non-lodgers are not considered accessory uses and therefore do not require review as a separate land use. Regulations for commercial indoor lodging uses include the following:
(a)
If located on the same side of a building as abutting residentially zoned property, no customer entrance of any kind shall be permitted within 100 feet of a residentially zoned property.
(b)
Facility shall provide a landscaped buffer with a minimum opacity of 0.60 along all property borders abutting residentially zoned property.
(c)
Minimum required parking: One space per bedroom, plus one space for each employee on the largest work shift.
(d)
Zoning and occupancy permit: All commercial indoor lodging facilities must obtain a zoning and occupancy permit from the City of Portage.
(e)
Licenses: All commercial indoor lodging facilities must hold a non-expired license from the Department of Agriculture, Trade and Consumer Protection (DATCP).
(15)
Boarding house. Any residential use with shared bathroom, living, and/or kitchen facilities. Regulations for boarding houses include the following:
(a)
Facility shall provide a landscaped buffer with a minimum opacity of 0.60 along all property borders abutting residentially zoned property.
(b)
Shall provide a minimum of one on-site parking space for each room for rent.
(c)
Shall be located in an area of transition from residential land uses to non-residential land uses.
(d)
Minimum required parking: One space per room for rent, plus one space per each employee on the largest work shift.
(e)
Zoning and occupancy permit: All boarding houses must obtain a zoning and occupancy permit from the City of Portage.
(16)
Campground. Campgrounds include any facilities designed for overnight accommodation of persons in tents, travel trailers, or other mobile or portable shelters or vehicles. Regulations for campgrounds include the following:
(a)
Facility shall provide a landscaped buffer with a minimum opacity of 0.70 along all property borders abutting residentially zoned property.
(b)
Minimum required parking: One and one-half spaces per campsite.
(17)
Commercial animal service and boarding. Facilities where animal services and boarding is provided, such as veterinary clinics, pet grooming, kennels, and stables. Exercise yards, fields, training areas, and trails associated with such land uses are considered accessory to such land uses and do not require separate consideration. Regulations for commercial animal service and boarding uses include the following:
(a)
Each animal shall be provided with an indoor containment area.
(b)
The minimum permitted size of horse or similar animal stall shall be 100 square feet.
(c)
Special events such as shows, exhibitions, and contests shall only be permitted when a temporary use permit has been secured.
(d)
Minimum required parking: One space per every 1,000 square feet of gross floor area.
(18)
Vehicle sales. The display and sale or rental of vehicles outside of an enclosed building. Such land uses also include a repair shop associated with the vehicle display lot and sales building. Such land uses do not include the storage or display of inoperative vehicles or equipment, or other materials typically associated with a junkyard or salvage yard (see subsection 90-59(4)). If a land use displays only a limited amount of for sale or rent vehicles outside of an enclosed building, such use may instead be considered incidental to indoor sales under subsection 90-62(13). Regulations for vehicle sales include the following:
(a)
The area of outdoor vehicle sales shall be calculated as the area which would be enclosed by a required physical separation installed and continually maintained in the most efficient manner which completely encloses all vehicles displayed outdoors.
(b)
The display of vehicles shall not be permitted in required landscaped areas, bufferyards, or within setback areas for the principal structure.
(c)
Display areas shall be separated from any circulation area by a minimum of ten feet. This separation shall be clearly delimited by a physical separation such as a greenway, curb, fence, line of planters, or by a clearly marked paved area.
(d)
Signs, screening, enclosures, landscaping, or materials being displayed shall not interfere in any manner with either on-site or off-site traffic visibility, including potential traffic/traffic and traffic/pedestrian conflicts.
(e)
Vehicle sales shall be permitted during the entire calendar year; however, if goods are removed from the display area all support fixtures used to display the goods shall be removed within ten calendar days of the goods' removal.
(f)
Inoperative vehicles or equipment, or other items typically stored or displayed in a junkyard or salvage yard, shall not be displayed for this land use.
(g)
Facility shall provide a landscaped buffer with a minimum opacity of 0.60 along all borders of the display area abutting residentially zoned property.
(h)
In no event shall the display of items reduce or inhibit the use or number of parking stalls provided on the property below the requirement established by the provisions (j), below. If the number of provided parking stalls on the property is already less than the requirement, such display area shall not further reduce the number of parking stalls already present.
(i)
Minimum required parking: One space per 300 square feet of gross floor area.
(19)
Vehicle repair and maintenance. Vehicle repair and maintenance services, independent of vehicles sales (see subsection 90-58(17)), include all land uses which perform maintenance services (including repair) to motorized vehicles and contain all operations (except vehicle storage) entirely within an enclosed building. Regulations for vehicle repair and maintenance uses include the following:
(a)
Storage of abandoned vehicles is prohibited.
(b)
Facility shall provide a landscaped buffer with a minimum opacity of 0.60 along all property borders abutting residentially zoned property.
(c)
Minimum required parking: One space per 300 square feet of gross floor area. Adequate on-site parking is required for all customer and employee vehicles.
(Ord. No. 13-005, § 1, 3-28-2013; Ord. No. 21-02, § IV, 8-26-2021)
(1)
Indoor storage and wholesaling. Land uses primarily oriented to the receiving, holding, and shipping of packaged materials for a single business or a single group of businesses. With the exception of loading and parking facilities, such land uses are contained entirely within an enclosed building. Examples of this land use include conventional warehouse facilities, long-term indoor storage facilities, and joint warehouse and storage facilities. Regulations for indoor storage and wholesaling uses include the following:
(a)
Minimum required parking: One space per 2,000 square feet of gross floor area.
(2)
Outdoor storage or wholesaling. Land uses primarily oriented to the receiving, holding, and shipping of packaged materials for a single business or a single group of businesses. Such a land use, in which any activity beyond loading and parking is located outdoors, is considered an outdoor storage and wholesaling land use. Examples of this land use include contractors' storage yards, equipment yards, lumber yards, coal yards, landscaping materials yard, construction materials yards, and shipping materials yards. Such land uses do not include the storage of inoperative vehicles or equipment, or other materials typically associated with a junkyard or salvage yard. Regulations for outdoor storage and wholesaling uses include the following:
(a)
All outdoor storage areas shall be completely enclosed by any permitted combination of buildings, structures, walls, and fencing. Such walls and fencing shall be a minimum of eight feet in height and shall be designed to completely screen all stored materials from view from non-industrialized areas at an elevation of five feet above the grade of all adjacent properties and rights-of-way. Said walls or fencing have a minimum opacity of 0.80.
(b)
The storage of items shall not be permitted in required landscaping areas.
(c)
Storage areas shall be separated from any vehicular parking or circulation area by a minimum of ten feet. This separation shall be clearly delimited by a physical separation such as a greenway, curb, fence, line of planters, or by a clearly marked paved area.
(d)
Materials being stored shall not interfere in any manner with either on-site or off-site traffic visibility, including potential traffic/traffic and traffic/pedestrian conflicts.
(e)
Inoperative vehicles or equipment, or other items typically stored in a junkyard or salvage yard, shall not be stored under the provisions of this land use.
(f)
Facility shall provide a landscaped buffer with a minimum opacity of 0.60 along all property borders abutting residentially zoned property.
(g)
All outdoor storage areas shall be located no closer to a residentially zoned property than the required minimum setback for buildings on the subject property.
(h)
In no event shall the storage of items reduce or inhibit the use or number of parking stalls provided on the property below the requirement established by the provisions (i), below. If the number of provided parking stalls on the property is already less than the requirement, such storage area shall not further reduce the number of parking stalls already present.
(i)
Minimum required parking: One space for every 10,000 square feet of gross storage area, plus one space per each employee on the largest work shift.
(3)
Personal storage facility. Personal storage facilities (also known as "mini-warehouses") are land uses oriented to the indoor storage of items entirely within partitioned buildings having an individual access to each partitioned area. Such storage areas may be available on either a condominium or rental basis. Regulations for personal storage facilities include the following:
(a)
Facility shall be designed so as to minimize adverse visual impacts on nearby developments. The color, exterior materials, and orientation of proposed buildings and structures shall complement surrounding development.
(b)
Facility shall provide a landscaped buffer with a minimum opacity of 0.80 along all property borders abutting residentially zoned property.
(c)
No electrical power shall be run to the storage facilities, except for exterior lighting.
(d)
Minimum required parking: One space for each employee on the largest work shift.
(4)
Junkyard or salvage yard. Outdoor facilities used for a salvaging operation, including but not limited to the above-ground storage and/or sale of waste paper, rags, scrap metal, and any other discarded materials intended for sale and/or the collection, dismantlement, or salvage of two or more unlicensed and/or inoperative vehicles. Regulations for junkyard or salvage yard uses include the following:
(a)
Facility shall provide a landscaped buffer with a minimum opacity of 1.00 along all property borders abutting residentially zoned property.
(b)
All buildings, structures, outdoor storage areas, and any other activity areas shall be located a minimum of 100 feet from roads and 50 feet from all lot lines.
(c)
In no instance shall activity areas be located within a required frontage landscaping areas.
(d)
Shall not involve the storage, handling, or collection of hazardous materials.
(e)
Minimum required parking: One space for every 20,000 square feet of gross storage area, plus one space for each employee on the largest work shift.
(5)
Waste disposal/composting facility. Waste disposal facilities are any areas used for the collection and disposal of solid wastes and recyclable materials including those defined by Wis. Stats.§ 289.01(33). Composting facilities are any land uses devoted to the collection, storage, processing, and or disposal of vegetation. Regulations for waste disposal or composting facilities include the following:
(a)
Such land uses shall comply with all county, state, and federal regulations.
(b)
Facility shall provide a landscaped buffer with a minimum opacity of 1.00 along all borders of the property.
(c)
All buildings, structures, and activity areas shall be located a minimum of 300 feet from all lot lines.
(d)
Composting operations shall not involve on-site holding, storage or disposal of food scraps, other vermin-attracting materials, or hazardous wastes defined by State Statutes.
(e)
Operations shall not involve the on-site holding, storage, or disposal of hazardous materials in any manner.
(f)
Required site plans shall include detailed site restoration plans, which shall include at minimum, detailed grading and re-vegetation plans, and a detailed written statement indicating the timetable for such restoration. A surety bond, in an amount equivalent to 110 percent of the costs determined to be associated with said restoration (as determined by a third party selected by the city), shall be filed with the city by the petitioner (subject to approval by the zoning administrator), and shall be held by the city for the purpose of ensuring that the site is restored to its proposed condition. (The requirement for said surety is waived for facilities owned by public agencies.)
(g)
Minimum required parking: One space for each employee on the largest work shift.
(6)
Recycling center. Facilities designed to be a collection point where only recyclable items are sorted and/or temporarily stored prior to shipment for reuse and/or processing into new products. Examples of recyclable materials include newspapers, magazines, books, metal, glass, electronics, aluminum, etc. Regulations for recycling centers include the following:
(a)
Shall comply with all county, state and federal regulations, including the issuance of a Department of Natural Resources permit under state statutes.
(b)
All buildings, structures, and activity areas on composting operation sites shall be located a minimum of 50 feet from all lot lines.
(c)
Facility shall provide a landscaped buffer with a minimum opacity of 1.00 along all borders of the property.
(d)
Operations shall not involve the on-site holding, storage, or disposal of hazardous materials in any manner.
(e)
Required site plans shall include detailed site restoration plans, which shall include at minimum, detailed grading and re-vegetation plans, and a detailed written statement indicating the timetable for such restoration. A surety bond, in an amount equivalent to 110 percent of the costs determined to be associated with said restoration (as determined by a third party selected by the city), shall be filed with the city by the petitioner (subject to approval by the zoning administrator), and shall be held by the city for the purpose of ensuring that the site is restored to its proposed condition. (The requirement for said surety is waived for facilities owned by public agencies.)
(f)
Minimum required parking: One space for each employee on the largest work shift.
(Ord. No. 13-005, § 1, 3-28-2013)
(1)
Airport. Transportation facilities providing takeoff, landing, servicing, storage, and other services to any type of air transportation, including ultralight aircraft, hang gliders, parasails, and related equipment. Regulations for airports include the following:
(a)
All buildings, structures, outdoor airplane or helicopter storage areas, and any other activity areas shall be located a minimum of 20 feet from all lot lines.
(b)
Facility shall provide a landscaped buffer with a minimum opacity of 1.00 along all borders of the property not otherwise completely screened from activity areas by buildings or structures.
(c)
Minimum required parking: One space per each employee on the largest work shift, plus one space per every five passengers based on average daily ridership.
(2)
Distribution center. Facilities oriented to the short-term indoor storage and possible repackaging and reshipment of materials involving the activities and products of a single user. Retail outlets associated with this use shall be considered accessory uses per section 90-62(14). Regulations for distribution centers include the following:
(a)
Facility shall provide a landscaped buffer with a minimum opacity of 1.00 along all property borders abutting residentially zoned property.
(b)
All buildings, structures, outdoor storage areas, and any other activity areas shall be located a minimum of 100 feet from all lot lines abutting residentially zoned property.
(c)
In no instance shall activity areas be located within a required frontage landscaping areas.
(d)
Minimum required parking: One space per each employee on the largest work shift.
(3)
Freight terminal. Land and buildings representing either end of one or more truck carrier line(s) which may have some or all of the following facilities: yards, docks, management offices, storage sheds, buildings, and/or outdoor storage areas, freight stations, and truck maintenance and repair facilities, principally serving several or many businesses and always requiring trans-shipment. Regulations for freight terminals include the following:
(a)
Facility shall provide a landscaped buffer with a minimum opacity of 1.00 along all property borders abutting residentially zoned property.
(b)
All buildings, structures, outdoor storage areas, and any other activity areas shall be located a minimum of 100 feet from all lot lines abutting residentially zoned property.
(c)
In no instance shall activity areas be located within a required frontage landscaping areas.
(d)
Minimum required parking: One space per each employee on the largest work shift.
(4)
Off-site parking lot. Off-site parking lots are any areas used for the temporary parking of vehicles which are fully registered, licensed and operative. Regulations for off-site parking lots include the following:
(a)
Access and vehicular circulation shall be designed so as to discourage cut-through traffic.
(Ord. No. 13-005, § 1, 3-28-2013; Ord. No. 21-02, § IV, 8-26-2021; Ord. No. 22-002, § 1, 2-10-2022)
(1)
Light industrial. Industrial facilities at which all operations (with the exception of loading operations) are conducted entirely within an enclosed building; are not potentially associated with nuisances such as odor, noise, heat, vibration, and radiation which are detectable at the property line; do not pose a significant safety hazard (such as danger of explosion); and comply with all of the performance standards listed for potential nuisances in article VII. Light industrial land uses may conduct retail sales activity as an accessory use per section 90-62(15). Regulations for light industrial uses include the following:
(a)
All activities, except loading and unloading, shall be conducted entirely within the confines of a building.
(b)
Minimum required parking: One space per each employee on the largest work shift.
(2)
Heavy industrial. Industrial facilities which do not comply with one or more of the following criteria: are conducted entirely within an enclosed building; are not potentially associated with nuisances such as odor, noise, heat, vibration, and radiation which are detectable at the property line; and do not pose a significant safety hazard (such as danger of explosion). More specifically, heavy industrial land uses are industrial land uses which may be wholly or partially located outside of an enclosed building; may have the potential to create certain nuisances which are detectable at the property line; and may involve materials which pose a significant safety hazard. However, in no instance shall a heavy industrial land use exceed the performance standards listed in article VII. Examples of heavy industrial land uses include meat product producers; alcoholic beverage producers; paper, pulp or paperboard producers; chemical and allied product producers (except drug producers) including poison or fertilizer producers; petroleum and coal product producers; asphalt, concrete or cement producers; tanneries; stone, clay or glass product producers; primary metal producers; heavy machinery producers; electrical distribution equipment producers; electrical industrial apparatus producers; transportation vehicle producers; commercial sanitary sewage treatment plants; railroad switching yards; and recycling facilities not involving the on-site storage of salvage materials. Regulations for heavy industrial uses include the following:
(a)
Facility shall provide a landscaped buffer with a minimum opacity of 1.00 along all borders of the property other than permanent open space abutting properties which are not zoned M-2 Heavy Industrial.
(b)
All outdoor activity areas shall be located a minimum of 100 feet from residentially zoned property.
(c)
No materials shall be stacked or otherwise stored so as to be visible over landscaping screening elements.
(d)
Minimum required parking: One space per each employee on the largest work shift.
(3)
Non-metallic extraction. Land uses involving the removal of soil, clay, sand, gravel, rock, minerals, peat, or other material in excess of that required for approved on-site development or agricultural activities. Regulations for non-metallic extraction uses include the following:
(a)
Shall receive approval from the county prior to action by the city and shall comply with all county, state, and federal regulations.
(b)
Facility shall provide a landscaped buffer with a minimum opacity of 1.00 along all borders of the property other than permanent open space.
(c)
All buildings, structures, and activity areas shall be located a minimum of 300 feet from all lot lines.
(d)
Required site plans shall include detailed site restoration plans, which shall include, at minimum, detailed grading and re-vegetation plans and a detailed written statement indicating the timetable for such restoration. A surety bond, in an amount equivalent to 110 percent of the costs determined to be associated with said restoration (as determined by a third party selected by the city), shall be filed with the city by the petitioner (subject to approval by the zoning administrator), and shall be held by the city for the purpose of ensuring that the site is restored to its proposed condition. (The requirement for said surety is waived for publicly-owned extraction facilities.)
(e)
Minimum required parking: One space per each employee on the largest work shift.
(Ord. No. 13-005, § 1, 3-28-2013; Ord. No. 21-02, § IV, 8-26-2021)
(1)
Accessory yard structure. Accessory yard structures include detached private residential garages, carports primarily use to shelter parked passenger vehicles, and utility sheds used to store residential maintenance equipment of the subject property. Regulations for accessory yard structures include the following:
(a)
One attached or detached garage and one accessory yard structure shall be permitted by right.
(b)
The combined gross floor area of garages, carports, and utility sheds shall not exceed the gross floor area of the principal structure on the lot.
(c)
For garages in embankments in front yards, where the mean natural grade of a front yard is more than 8 feet above the curb level, a private garage may be erected within the front yard, provided as follows:
1.
That such private garage shall be located not less than five feet from the front lot line;
2.
That the floor level of such private garage shall be not more than one foot above the curb level; and
3.
That at least one-half the height of such private garage shall be below the mean grade of the front yard.
(d)
A conditional use permit is required for:
1.
A combination of accessory structures exceeding a total of 1,000 square feet.
2.
More than two accessory structures.
3.
A street-loaded garage within the R-T Residential District (alley-loaded garages are permitted by right).
(2)
Private residential recreation. This land use includes all active outdoor recreational facilities located on a private residential lot which are not otherwise listed herein. Common examples of these accessory uses include swing sets, tree houses, basketball courts, tennis courts, swimming pools, and recreation-type equipment. Regulations for private residential recreation uses include the following:
(a)
Exterior lighting of structure or facility shall be equal to or less than 0.5 foot candles.
(b)
Tree houses and similar platforms shall not exceed a platform height of eight feet and shall be setback twice their elevation from any property line.
(3)
Upper story dwelling unit. Upper story dwelling units are dwelling units which are located directly above the ground floor of a building used for an office, commercial, or institutional land use. Residential uses will be permitted on the ground floor of a building used for an office, commercial, or institutional land use, but may not be within the first 24 feet of the ground floor measured from the front of the building. Regulations for upper story dwelling units include the following:
(a)
The gross floor area devoted to commercial apartments shall be counted toward the floor area of a nonresidential development.
(b)
Minimum required parking: Except in the downtown zoning district, a minimum of one off-street parking space shall be provided for each bedroom within a commercial apartment. Parking spaces provided by nonresidential land uses on the site may be counted for this requirement with the approval of the zoning administrator.
(4)
Caretaker's residence. This land use includes any residential unit which provides permanent housing for a caretaker of the subject property in either an attached or detached configuration. Regulations for caretaker's residence include the following:
(a)
Shall provide housing only for on-site caretaker and family.
(5)
In-family suite. The in-family suite is an area within a dwelling unit that may contain a separate kitchen, dining, bathroom, laundry, living, sleeping, and recreation areas, including exterior porches, patios, and decks. In addition to the required internal physical connection, separate outdoor access or separate access to the garage may be provided. However, external stairs serving as the primary access to the in-family suite are prohibited. Regulations for in-family suites include the following:
(a)
The dwelling unit and the in-family suite shall together appear as a single-family dwelling. A separate walled garage area or driveway is not permitted.
(b)
A separate address for the in-family suite is not permitted.
(c)
A separate utility connection or meters are not permitted.
(d)
A physical all-weather connection between the main living area and the in-family suite must be present. This required connection may not occur through an attic, basement, garage, porch, or other non-living area. A door may be used to separate the in-family suite from the rest of the dwelling unit, but may not be locking, except that a locking door may be used for the bedroom and bathroom doors of the in-family suite.
(e)
The in-family suites may not be occupied by a non-family member.
(f)
In-family suites should be considered and regulated as part of a single-family dwelling unit.
(g)
When an application is submitted for a building permit to accommodate what is explicitly listed as, or could possibly serve as, an in-family suite, the building plan shall be marked as "not a separate dwelling unit or apartment," and a signed letter from the applicant stating agreement with this condition shall be filed.
(6)
Farm residence. A farm residence is a single-family detached dwelling unit located on the same property as any of the principal agricultural land uses listed in section 90-56.
(7)
Private residential kennel. A maximum of any combination of four dogs and/or cats (over five months of age) are permitted by right for any one residential unit. Any residence housing more dogs and/or cats in any combination shall be considered a private residential kennel and is subject to regulations included in section 6-54 of the Municipal Code.
(8)
Private residential stable. A private residential stable is a structure facilitating the keeping of horses (or similar animals) on the same site as a residential dwelling. Regulations for private residential stables include the following:
(a)
A minimum lot area of 175,000 square feet (4 acres) is required for a private residential stable.
(b)
A maximum of one horse per two acres of fully enclosed (by fencing and/or structures) area is permitted.
(c)
Outdoor containments for animals shall be located a minimum of 25 feet from any residentially zoned property.
(d)
The minimum permitted size of horse or similar animal stall shall be 100 square feet.
(9)
Home occupation. It is the intent of this section to provide a means to accommodate a small home-based family or professional business without the necessity of a rezoning from a residential to a business district. Approval of an expansion of a home occupation at a future time beyond the limitations of this section is not to be anticipated; relocation of the business to an area that is appropriately zoned may be necessary. Home occupations are economic activities performed within any single-family detached residence which comply with the following requirements. Examples include personal and professional services and handicrafts which comply with all of the following requirements:
(a)
The use is to be clearly incidental to residential use.
(b)
The area used to conduct the home occupation shall not exceed 25 percent of the improved square footage, excluding the garage, and the occupation shall be conducted within the principal building, except for sales of home grown produce grown on site.
(c)
Any home occupation shall be carried on only by a member of the immediate family residing on the premises.
(d)
Any home occupation involving customer visits to the premises shall require a conditional use permit.
(e)
No activity, materials, goods or equipment incidental to the home occupation shall be externally visible, except for home grown produce grown on site.
(f)
No home occupation shall endanger the public health and safety and shall not interfere with other parcels in the neighborhood.
(g)
No food articles shall be sold or offered for sale on the premises except for home grown produce grown on site.
(h)
No mechanical or electrical equipment shall be installed or maintained other than such as customarily incidental to domestic use.
(i)
Only one sign for professional services shall be allowed. Such sign shall not be illuminated and shall not exceed three square feet.
(10)
In-home daycare (4—8 children). Occupied residences in which a qualified person or persons provide childcare for four to eight children. The care of less than four children is not subject to the regulations of this chapter.
State Law reference— Wis. Stats. § 66.1017(1)(a).
(11)
In-Home Daycare (9—15 children). Occupied residences in which a qualified person or persons provide childcare for nine to 15 children.
State Law reference— Wis. Stats. § 48.65.
(12)
Company cafeteria. A food service operation which provides food only to company employees and their guests, meets state food service requirements, and is located on the same property as a principal land use engaged in an operation other than food service.
(13)
Company recreation. Any active or passive recreational facility located on the same site as a principal land use, and which is reserved solely for the use of company employees and their guests. Regulations for company recreation uses include the following:
(a)
All structures and actively used outdoor areas shall be located a minimum of 50 feet from any residentially zoned property.
(b)
Outdoor recreation facilities using night lighting and adjoining a residentially zoned property shall install and continually maintain a landscaped buffer with a minimum opacity of 0.60. Facilities using night lighting shall require a conditional use permit.
(14)
Incidental indoor sales. These land uses include any retail sales activity conducted exclusively indoors which is incidental to a principal land use such as warehousing, wholesaling, or any light industrial land use on the same site. Regulations for incidental indoor sales uses include the following:
(a)
Adequate parking, per the requirements of subsection 90-58(2) shall be provided for customers. Said parking shall be in addition to that required for customary storage or light industrial activities.
(b)
The total area devoted to sales activity shall not exceed 25 percent of the total area of the buildings on the property. Areas devoted to artisan studio uses such as custom ceramics, glass, wood, paper, fabric, and similar crafts may exceed 5,000 square feet with the granting of a conditional use permit for such use.
(c)
Shall provide restroom facilities directly accessible from retail sales area.
(d)
Retail sales area shall by physically separated by a wall from other activity areas.
(15)
Incidental light industrial. Any light industrial activity conducted exclusively indoors which is incidental to a principal land use such as indoor sales or service, on the same site. Regulations for incidental light industrial uses include the following:
(a)
The total area devoted to light industrial activity shall not exceed 15 percent of the total area of the buildings on the property, or 5,000 square feet, whichever is less.
(b)
Production area shall be physically separated by a wall from other activity areas and shall be soundproofed to the level required by section 90-124 of this chapter for all adjacent properties.
(16)
Incidental outdoor display. The sale and display of merchandise or equipment outside of an enclosed building and is incidental to a principal commercial or industrial land use. Regulations for incidental outdoor display uses include the following:
(a)
Outdoor display of merchandise or equipment shall not exceed 12 days.
(b)
Display area shall not exceed 25 percent of gross floor area of principal building on the site.
(17)
Migrant labor camp. Migrant labor camps include any facility subject to the regulation of Wis. Stats. 103.90(3)(a). Regulations for migrant labor camps include the following:
(a)
Shall be surrounded by a landscaped buffer with a minimum opacity of 0.60 along all property lines adjacent to all properties in residential, office, or business zoning districts.
(b)
Migrant labor camp shall be an accessory use to an active principal use and under the same ownership.
(18)
On-site accessory parking lot. On-site parking lots are any areas located on the same site as the principal land use which are used for the temporary parking of vehicles which are fully registered, licensed, and operative. Regulations for on-site accessory parking lots include the following:
(a)
Access and vehicular circulation shall be designed so as to discourage cut-through traffic.
(19)
Drainage structure. These include all improvements including, but not limited to swales, ditches, culverts, drains, tiles, gutters, levees, basins, detention or retention facilities, impoundments, and dams intended to effect the direction, rate and/or volume of stormwater runoff, snow melt, and/or channelized flows across, within and/or away from a site. Regulations for drainage structures include the following:
(a)
All drainage improvements shall comply with the city's stormwater regulations listed in article VIII of chapter 10 of the Municipal Code.
(20)
Individual septic disposal system. This land use includes any state-enabled, county-approved septic disposal system. Regulations for individual septic disposal systems include the following:
(a)
Minimum lot size of 0.5 acres.
(21)
Wind energy conversion system (WECS). A machine or mechanism that converts the kinetic energy in the wind into a usable form of electrical or mechanical energy, such as a wind turbine or windmill. Regulations for WECS include the following:
(a)
The WECS shall be located such that the furthest extension of the apparatus does not cross any site or property line.
(b)
If the WECS is not maintained in operational condition and poses a potential safety hazard, the owner or operator shall take expeditious action to remedy the situation. If the WECS has not been in operational condition for a period of one year, the WECS shall be considered as posing a potential safety hazard. The city reserves the authority to abate any hazardous situation and to pass the cost of such abatement onto the owner or operator of the system. If the city determines that the wind energy conversion system has been abandoned and poses a safety hazard, the system shall be removed within 45 days of written notice to the owner or operator of the system.
(c)
WECS shall be set back from all property lines at a distance that is greater than or equal to the maximum height of the WECS structure.
(d)
No WECS shall be constructed on any lot prior to establishment of an allowable principal structure, unless otherwise stated in this chapter.
(22)
Solar energy system. An energy system which converts solar energy to usable thermal, mechanical, chemical, or electrical energy. Regulations for solar energy systems include the following:
(a)
Roof top solar energy systems are permitted by right in all zoning districts as accessory structures.
(b)
Building-mounted and free standing solar energy systems that meet the setbacks for accessory structures are permitted by right in all zoning districts. Building-mounted and free standing solar energy systems that do not meet the setbacks for accessory structures are permitted as conditional uses in all zoning districts.
(c)
Solar energy systems are limited to the height restriction for principal buildings of the district in which they are located.
(d)
Free standing solar energy systems shall comply with the height limits for accessory structures. Building-mounted solar energy systems shall comply with the height limits for primary structures.
(e)
No person in control of property shall allow a tree or shrub to be placed or grow so as to cast a shadow between the hours of 9:00 a.m. and 3:00 p.m. Central Daylight Saving Time, upon a solar collector energy system capable of generating more than 1,000,000 British thermal units per year, and which supplies a part of the energy requirements for improvements on the property where the solar energy system is permanently located. The provisions of this subsection shall not require the removal of existing vegetation.
(f)
The requirements of Wisconsin Statutes, including but not limited to §§ 66.0401 and 66.0403, shall apply to all solar energy systems.
(23)
Chicken coop and run. Refer to section 6-122.
(a)
No chicken coop or run shall be located closer than 15 feet to any lot line, unless neighbor approval requirements are met.
(b)
No chicken coop shall be located in the front or side yard of a parcel, whether outside the setback or not.
(c)
Chicken coops shall not be included in the number of permitted accessory structures on a lot.
(d)
Chickens shall not be permitted in any other structure on the lot, including garages, basements and attics.
(Ord. No. 13-005, § 1, 3-28-2013; Ord. No. 21-02, § IV, 8-26-2021)
(1)
Clear cutting. The one-time, continuing, or cumulative clearing, cutting, harvesting, or other destruction (including by fire) of trees in an area (or combined areas) of more than 30 percent of the woodlands on a property (or up to 100 percent for developments approved prior to the effective date of this chapter). Any owner of property who intentionally clear cuts any area of his/her property or who intentionally solicits or causes another to intentionally clear cut any area of his/her property without first having secured a conditional use permit for such activity shall be subject to a forfeiture for such wrongful conduct and shall be required to implement the mitigation standards required for the destruction of woodlands solely at his/her expense, including costs associated with site inspection to confirm the satisfaction of mitigation requirements. Areas having been clear cut unintentionally as a result of fire shall not subject the owner of the property to forfeiture for such non-approved clear cutting activity, but shall require the satisfaction of mitigation requirements at the owner's expense, including cost associated with site inspection to confirm the satisfaction of mitigation requirements.
(a)
Clear cutting requires a conditional use permit.
(b)
Applicant shall demonstrate that clear cutting will improve the level of environmental protection on the subject property.
(c)
Areas of the subject property which are clear cut beyond the limitations established above shall be replanted.
(d)
Clear cutting shall not be permitted within required landscaped areas or within an area within the C-1 resource conservation overlay district.
(2)
Selective cutting. The one-time, continuing, or cumulative clearing, cutting, harvesting, or other destruction of trees (including by fire) where the extent of such activity is limited to an area (or combined areas) of less than or equal to 30 percent of the woodlands on the property (or up to 100 percent for developments approved prior to the effective date of this chapter). Selective cutting activity shall be limited to areas located within development pads which are designated on recorded plats or certified survey maps. The destruction of trees in an area in excess of this amount of the woodlands on the property shall be considered clear cutting (see (1), above).
(3)
Filling. Filling includes any activity involving the modification of the earth's surface above that in its undisturbed state. Regulations for filling activities include the following:
(a)
Shall not exceed over 4,000 square feet in area or 500 cubic yards of fill
(b)
Shall not create drainage onto other properties.
(c)
Shall not impede on-site drainage.
(d)
Shall comply with provisions of the Chapter 70, Subdivisions.
(4)
Outdoor assembly. Includes any organized outdoor assembly of more than 100 persons, such as an outdoor wedding or tent meetings. Regulations for outdoor assembly uses include the following:
(a)
Activities shall not obstruct pedestrian or vehicular circulation, including vehicular sight distances.
(b)
Adequate parking, drinking water, and toilet facilities shall be provided, and shall be described in the application.
(c)
Adequate provisions for crowd control shall be made and shall be described within the application.
(d)
Shall comply with standards and regulations listed in the City of Portage Nuisance Ordinance in Chapter 26, Article III.
(e)
Shall comply with standards and procedures applicable to all temporary uses.
(5)
Contractor's project office. Any structure containing an on-site construction management office for an active construction project, including those used for electricians and plumbers. Regulations for contractor's project offices include the following:
(a)
Facility(ies) shall be removed within ten days of issuance of occupancy permit.
(b)
Shall not be used for sales activity.
(c)
Projects requiring land use to be in place for more than two years shall require a conditional use permit.
(d)
Shall comply with standards and procedures applicable to all temporary uses.
(6)
Contractor's on-site equipment storage. Any structure or outdoor storage area designed for the on-site storage of construction equipment and/or materials for an active construction project. Regulations for contractor's on-site equipment storage uses include the following:
(a)
Facility(ies) shall be removed within ten days of issuance of occupancy permit.
(b)
Projects requiring land use to be in place for more than 2 years shall require a conditional use permit.
(c)
Shall comply with standards and procedures applicable to all temporary uses.
(7)
General temporary outdoor sales. The display of any items outside the confines of a building which is not otherwise permitted as permitted or conditional use or a special event otherwise regulated by the Municipal Code. Examples of this land use include but are not limited to seasonal garden shops, tent sales, Christmas tree sales, bratwurst stands, and more than 3 garage sales per year. Please note temporary fireworks sales require a permit per Sect. 30-415. Regulations for general temporary outdoor sales include the following:
(a)
The user shall provide a site plan of the temporary outdoor activities to the zoning administrator for approval prior to any activity. The site plan shall be in compliance with the following regulations:
(i)
Display shall not obstruct pedestrian or vehicular circulation, including vehicular sight distance.
(8)
On-site real estate sales office. On-site real estate sales offices include any building that serves as an on-site sales office for a development project. Regulations for on-site real estate offices include the following:
(a)
Structure shall not exceed 5,000 square feet in gross floor area.
(b)
Facility shall be removed or converted to a permitted land use within 10 days of the completion of sales activity.
(c)
Projects requiring land use to be in place for more than 365 days shall require a conditional use permit.
(d)
Shall comply with standards and procedures applicable to all temporary uses.
(9)
Relocatable building. Any manufactured building which serves as a temporary building for less than six months. Regulations for relocatable buildings include the following:
(a)
Shall conform to all setback regulations.
(b)
Shall conform to all building code regulations.
(c)
Shall comply with standards and procedures applicable to all temporary uses.
(10)
Seasonal outdoor sales of farm products. Seasonal outdoor sales of farm products include any outdoor display of farm products not otherwise regulated by the Municipal Code. Regulations for seasonal outdoor sales of farm products include the following:
(a)
Display shall not obstruct pedestrian or vehicular circulation, including vehicular sight distances.
(b)
Adequate parking shall be provided.
(c)
If subject property is located adjacent to a residential area, sales and display activities shall be limited to daylight hours.
(d)
Shall comply with standards and procedures applicable to all temporary uses.
(11)
Temporary portable storage container. A portable storage container designed and used primarily for temporary storage of household goods and other such materials for use on a limited basis. Regulations for temporary portable storage containers include the following:
(a)
Containers shall not exceed 260 square feet in size with a maximum outside dimension of nine feet in height for residentially zoned properties and shall not exceed 500 square feet in size and nine feet in height (outside dimension) for commercial properties.
(b)
The container shall be permitted on residential property for up to 30 days or commercial property up to 60 days. A one-time extension to the time limits (maximum 30 additional days) for placement of a temporary portable storage container may be granted by the zoning administrator. Locating storage containers on properties in excess of these durations shall require a conditional use permit per Section 90-472.
(c)
The temporary portable storage container cannot encroach on the public right-of-way, neighboring property, sidewalk, or be placed in the street. The unit must be sited on asphalt, concrete, gravel, or hard paved surface.
(d)
All temporary residential and commercial use of temporary portable storage containers shall require review and approval by the zoning administrator; however, no fee is required. The applicant shall provide written permission from the land owner to place the temporary portable storage container on the property in accordance with the regulations listed in this section.
(e)
Shall comply with standards and procedures applicable to all temporary uses.
(12)
Temporary shelter. These shelters are typically supported by poles, have a fabric roof and/or sides and are usually used to cover automobiles, boats, recreational vehicles, or fire wood on a temporary or permanent basis. These structures are not designed for the snow loading that can occur during the winter months.
(Ord. No. 13-005, § 1, 3-28-2013; Ord. No. 21-02, § IV, 8-26-2021; Ord. No. 22-002, § 2, 2-10-2022; Ord. No. 22-002, § 3, 2-10-2022)
(1)
Purpose. The purpose of this section is to establish standards that ensure group developments and large developments are properly located and are compatible with the surrounding area and the overall community character of the City of Portage.
(2)
Definitions.
(a)
Group development. Any development located on one lot and comprised of any single instance or any combination of the following development types:
1.
One or more principal multi-family residential buildings with a total of five or more residential units on the same lot.
2.
Two or more principal structures on the same lot, whether currently serving a single use or more than one use.
3.
A mixed-use structure containing both nonresidential uses and residential uses.
4.
A single principal structure housing two or more leased or owned tenant spaces.
5.
Any addition of principal buildings that increases the total number of principal structures on the same lot to two or more.
(b)
Large development. Any development containing any single structure or combination of structures on one or more contiguous lots or building sites on which the total combined gross floor area of all development exceeds 40,000 square feet.
(3)
Common examples.
(a)
Common examples of group developments include apartment or condominium complexes, commercial centers, shopping centers, office centers, and multi-tenant industrial buildings. Single-tenant business or office buildings, one-tenant industrial buildings, four-unit apartment buildings and all Planned Developments are not considered group developments even though such developments may contain lots under common ownership.
(b)
Common examples of large developments include single-tenant institutional, business, or mixed use buildings in excess of 40,000 gross square feet, such as retail stores, restaurants, daycares, schools, or churches.
(c)
Common examples of developments that are both group developments and large developments include multi-tenant, non-residential buildings that are in excess of 40,000 gross square feet, and any multi-building developments in which the combined total of all structures on a site, regardless of diverse ownership, use, or tenancy, combine to exceed 40,000 gross square feet.
(4)
Review and approval.
(a)
All group developments and/or large developments shall be subject to the site plan review and approval process. In addition to the application requirements listed in section 90-474, the applicant shall demonstrate how the proposed development relates to each of the following criteria:
1.
Is consistent with the recommendations and advances the objectives of adopted city planning documents.
2.
Complements the design and layout of nearby buildings and developments.
3.
Enhances, rather than detracts from, the desired character of the city.
(b)
All group developments and large developments require a conditional use permit (see section 90-472 for review and approval procedure) regardless of whether individual use(s) within the development are permitted by right within the applicable district, except where such developments are approved as Planned Developments per sections 90-96 and 90-475.
(c)
Any land use that is either a permitted-by-right land use or a use allowed by conditional use permit within the applicable zoning district may be included within a group development and/or large development.
(d)
Land uses permitted by right in the applicable zoning district shall be permitted by right within an approved group and/or large development, subject to the provisions of this section, unless otherwise restricted by the conditions of approval imposed during the conditional use approval for the group development and/or large development as a whole.
(e)
Land uses allowed by conditional use permit within the applicable zoning district shall be allowed within the group development and/or large development only with conditional use approval for that specific use.
(f)
The detailed land use regulations in article III that pertain to each proposed land use shall apply within a group development and/or large development, as will all other applicable provisions of this chapter.
(g)
Following initial issuance of a conditional use permit for the group development and/or large development as a whole, the subsequent addition of structures, additions to structures, and expansions of parking or storage areas in the group development and/or large development shall require an amendment to the approved conditional use permit regardless of individual land use(s).
(h)
Subsequent changes to individual land uses within a group development and/or large development listed as permitted-by-right uses within the applicable zoning district are allowed without amendment to the group development and/or large development conditional use permit, unless said conditional use permit placed restrictions on change of use.
(i)
Subsequent changes to individual land uses that are allowed only with a conditional use permit may be allowed only under a subsequent conditional use permit for the specific use, regardless of whether said use entails modifications to the building and/or site layout in the group development and/or large development.
(5)
General layout and future divisibility.
(a)
All group developments and/or large developments shall comply with the applicable requirements of this chapter, including, but not limited to: density, intensity, bulk requirements; site design and performance standards; landscaping requirements; and signage requirements.
(b)
All development located within a group development and/or large development shall be located so as to comply with the setbacks of structures and buildings from lot lines to facilitate future subdivision if such action is so desired.
(6)
Standards applicable to all group developments and to all large developments.
(a)
Building placement and site layout. Where buildings are proposed to be distant from a public street, the overall development design shall include smaller buildings closer to the street. Placement and orientation must facilitate appropriate land use transitions and appropriate traffic flow to adjoining roads and neighboring commercial areas and neighborhoods.
(b)
Building materials. Exterior building materials shall be of comparable aesthetic quality on all sides. Building materials such as glass, brick, tinted and decorative concrete block, wood, stucco, and exterior insulation and finish systems may be used, as determined appropriate by the Plan Commission. Decorative architectural metal with concealed fasteners or decorative tilt-up concrete panels may be approved if incorporated into the overall design of the building.
(c)
Building design. The building exterior shall complement other buildings in the vicinity, and shall be of a design determined appropriate by the plan commission, including the following:
1.
The building shall employ varying setbacks, heights, roof treatments, doorways, window openings, and other structural or decorative elements to reduce apparent size and scale of the building.
2.
A minimum of 20 percent of the structure's façades that are visible from a public street shall employ actual protrusions or recesses with a depth of at least six feet. No uninterrupted facade shall extend more than 100 feet.
3.
A minimum of 20 percent of all of the combined linear roof eave or parapet lines of the structure shall employ differences in height, with such differences being six feet or more as measured cave to eave or parapet to parapet.
4.
Roofs with particular slopes may be required by the city to complement existing buildings or otherwise establish a particular aesthetic objective.
5.
Ground floor façades that face public streets shall have arcades (a series of outdoor spaces located under a roof or overhang and supported by columns or arches), display windows, entry areas, awnings, or other such features along no less than 50 percent of their horizontal length. The integration of windows into building design is required, and shall be transparent, clear glass (not tinted) between three to eight feet above the walkway along any facades facing a public street. The use of blinds shall be acceptable where there is a desire for opacity.
6.
Building façades shall include a repeating pattern that includes no less than three of the following elements:
a.
Color change.
b.
Texture change.
c.
Material modular change.
d.
Expression of architectural or structural bay through a change in plane no less than 24 inches in width, such as an offset, reveal, or projecting rib.
e.
At least one of these elements shall repeat horizontally. All elements shall repeat at intervals of no more than 30 feet, either horizontally or vertically.
(d)
Screening.
1.
All ground-mounted and wall-mounted mechanical equipment, refuse containers, and any permitted outdoor storage shall be fully concealed from on-site and off-site ground level views, with materials identical to those used on the building exterior.
2.
All rooftop mechanical equipment shall be screened by parapets, upper stories, or other areas of exterior walls or roofs so as to not be visible from public streets adjacent or within 1,000 feet of the subject property. Fences or similar rooftop screening devices may not be used to meet this requirement.
3.
Loading docks shall be completely screened from surrounding roads and properties. Said screening may be accomplished through loading areas internal to buildings, screen walls that match the building exterior in materials and design, fully opaque landscaping at time of planting, or combinations of the above.
4.
Gates and fencing may be used for security and access, but not for screening, and they shall be of high aesthetic quality. Decorative metal picket fencing and screening is acceptable. Chain link, wire mesh, or wood fencing is not permitted. Decorative, heavy-duty wood gates may be used.
(e)
Parking.
1.
Parking lot design shall employ interior, curbed landscaped islands at all parking aisle ends.
2.
Landscaped islands shall be provided within each parking aisle spaced at intervals no greater than one island per every 20 spaces in that aisle. Islands at the ends of aisles shall count toward meeting this requirement. Each required landscaped island shall be a minimum of 360 square feet in landscaped area.
3.
Landscaped and curbed medians, a minimum of 10 feet in width from back-of-curb to back of-curb, shall be used to create distinct parking areas of no more than 120 parking stalls.
(f)
Bicycle and pedestrian facilities.
1.
The entire development shall provide for safe pedestrian and bicycle access to all uses within the development, connections to existing and planned public pedestrian and bicycle facilities, and connections to adjacent properties.
2.
Pedestrian walkways shall be provided from all building entrances to existing or planned public sidewalks or pedestrian/bike facilities. The minimum width for sidewalks adjacent to buildings shall be ten feet; and the minimum width for sidewalks elsewhere in the development shall be five feet.
3.
Sidewalks other than street sidewalks or building aprons shall have adjoining landscaping along at least 50 percent of their length. Such landscape shall be consistent with the landscaping used for the street frontages.
4.
Crosswalks shall be distinguished from driving surfaces to enhance pedestrian safety by using different pavement materials, pavement color, pavement textures, and signage.
5.
The development shall provide secure, integrated bicycle parking at a rate of one bicycle rack space for every 50 vehicle parking spaces.
6.
The development shall provide exterior pedestrian furniture in appropriate locations at a minimum rate of one seat for every 20,000 square feet of gross floor area. Seating in food service areas, or other areas where food or merchandise purchasing activities occur shall not count toward this requirement. A minimum of four seats shall be located within the store, with a clear view through exit doors to a passenger pick-up or drop-off area.
(g)
Outdoor display areas. Exterior display areas shall be permitted only where clearly depicted on the approved site plan. All exterior display areas shall be separated from motor vehicle routes by a physical barrier visible to drivers and pedestrians, and by a minimum of ten feet. Display areas on building aprons must maintain a minimum walkway width of ten feet between the display items and any vehicle drives.
(h)
Outdoor storage uses and areas. Exterior storage structures or uses, including the parking or storage of vehicles, trailers, equipment, containers, crates, pallets, merchandise, materials, fork lifts, trash, recyclables, and all other items shall be permitted only where clearly depicted and labeled on the approved site plan.
(i)
Central areas and features. Each development exceeding 80,000 square feet in total gross floor area shall provide central area(s) or feature(s) such as a patio/seating area, pedestrian plaza with benches, outdoor playground area, water feature, and/or other such deliberately designated areas or focal points that adequately enhance the development or community. All such areas shall be openly accessible to the public, connected to the public and private sidewalk system, designed with materials compatible with the building and remainder of the site, and shall be maintained over the life of the building project.
(j)
Landscaping. On-site landscaping shall be provided at time of building occupancy and maintained per article VIII.
(k)
Lighting. On-site exterior lighting shall meet the standards in section 90-119.
(l)
Signage. The plan for exterior signage shall provide for modest, coordinated, and complementary exterior sign locations, configurations, and color throughout the development, including outlots. All freestanding signage within the development shall complement on-building signage. Monument style ground signs are required, and shall not exceed a height of eight feet. Consolidated signs for multiple users may be required instead of multiple individual signs. The city may require the use of muted corporate colors on signage if proposed colors are not compatible with the city's design objectives for the area. The use of logos, slogans, symbols, patterns, striping and other markings, and colors associated with a franchise or chain is permitted, but shall be considered as contributing to the number and area of permitted signs.
(m)
Noise. Noise associated with activities at the site shall not create a nuisance to nearby properties.
(n)
Stormwater Management and Erosion Control.
1.
Post-development runoff rates shall not exceed pre-settlement rates.
2.
Existing natural features shall be integrated into the site design as a site and community amenity.
3.
Maintenance of any storm water detention or conveyance features are solely borne by the developer/owner unless dedicated to and accepted by the city.
4.
Adherence to all applicable provisions of Chapter 10, Articles VII and VIII of the Municipal Code shall occur.
(7)
Additional rules applicable to all large developments.
(a)
A large development questionnaire shall be completed and provided along with the conditional use permit application in the format included at the end of this section.
(b)
Compatibility report. The applicant shall provide a compatibility report, submitted with the petition for a conditional use permit, demonstrating adequate evidence that the proposed building and overall development project will be compatible with the comprehensive plan and any detailed neighborhood or special area plan adopted by the city for the site area.
(c)
Traffic impact analysis. The city may require that a traffic impact analysis be completed in accordance with the most current revision of the Traffic Impact Analysis Guidelines published by the Wisconsin Department of Transportation. Such traffic impact analysis shall require the following components:
1.
A demonstration that vehicle access shall be designed to accommodate peak on-site traffic volumes without disrupting traffic on public streets or impairing pedestrian safety. This shall be accomplished through adequate parking lot design and capacity; access drive entry throat length; design, location, and number of traffic control devices; and sidewalks.
2.
Where the traffic impact analysis indicates that a project may cause off-site public roads, intersections, or interchanges to function below a level of service (LOS) C, the city may deny the application, require a size reduction in the proposed development, and/or require the developer to construct and/or pay for required off-site improvements to achieve a LOS C for a planning horizon of a minimum of ten years assuming full build-out of the development.
3.
The city has the option to require a trip generation study.
(d)
Economic and fiscal analysis. The city may require completion of an economic and fiscal impact analysis containing the following items:
1.
Estimate to what extent the proposed project would reduce the proposed market area's economic base by eliminating existing businesses.
2.
Compare and evaluate the projected costs and benefits to the community resulting from the project, including:
a.
Projected costs arising from increased demand for and required improvements to public services and infrastructure.
b.
Value of improvements to public services and infrastructure to be provided by the project.
c.
Projected tax revenues to the city to be generated by the project in the first five years of business.
d.
Projected impact of the project in the first five years on land values (both residential and nonresidential) and potential loss or increase in tax revenues to the City of Portage.
(e)
Detailed neighborhood plan. For a development exceeding 80,000 square feet in total gross floor area of all combined buildings within the development, the city may require that a detailed neighborhood plan be submitted and approved by the plan commission and common council. The detailed neighborhood plan shall be prepared for all areas within 1,500 feet of the subject property, as measured from the outer perimeter of the subject property or group of properties proposed for development, and any other nearby lands as determined by the plan commission to be part of the defined neighborhood. The detailed neighborhood plan shall contain the following specific elements at a scale of not less than 1″ = 400′:
1.
Land use with specific zoning districts and/or land uses.
2.
Transitional treatments such as berms and/or landscaping between areas with differing land uses or character.
3.
Complete transportation network, including pedestrian and bicycle facilities and transit routes and stops, where applicable.
4.
Conceptual stormwater management facilities.
5.
Proposed public facility sites, including parks, schools, conservation areas, public safety facilities and public utility facilities.
6.
Proposed community character themes, including building materials, landscaping, streetscaping, and signage.
7.
Demonstrate that the proposed detailed neighborhood plan is in harmony with the land use, multi-modal transportation, utility, stormwater management, community character provisions of the comprehensive plan.
(f)
Policy on vacation of existing sites. Where any large development in excess of 40,000 square feet of floor area is vacated because the commercial use (sale of goods or merchandise at the building) conducted thereon is being relocated to a different building, the party that vacated the site shall not impose limits on the type of reuse of the vacated site through conditions of sale or lease.
(g)
Additional requirements. All large developments are subject to the following additional requirements:
1.
The developer shall enter into a development agreement with the city, which shall include the payment of all utilities including but not limited to stormwater, sanitary sewer, and street infrastructure. Off-site improvements may also be required as part of the development agreement.
2.
Absolute building area cap. No individual building shall exceed a total of 155,000 square feet in gross floor area. This cap may not be exceeded by the granting of a planned development permit.
3.
All buildings on outlots shall be of architectural quality comparable to the primary structure, as determined by the plan commission.
Large Development Questionnaire
Table C: Economic and Fiscal Impact Analysis Requirements
(Ord. No. 13-005, § 1, 3-28-2013)