COMMUNITY ECONOMIC DEVELOPMENT INITIATIVES
Editor's note— Ord. No. 2015-25, § 1, adopted January 20, 2016, amended the title of div. III, to read as set out herein. Previously div. III was titled "Impact Fee Waivers."
Note— City Council, as an economic development incentive, may from time to time authorize the waiver, deferral or reduction of city impact fees due under the terms of Chapter 6 of the City's Code of Ordinances and under the terms of Section 17.39 of these regulations.
The City of Tavares recognizes that there is a demonstrated need to promote economic activity in the City by providing economic incentives that will encourage diverse new businesses to relocate to the city and current businesses to expand in order to provide a stronger, more balanced and stable economy in the City.
Businesses that provide a net positive contribution to the economy, provide an above-average wage to its employees and have a commitment to local employees are vital to the economy of Tavares and to the welfare of its citizens and need to be encouraged to relocate or to expand in the City so as to provide an economically sound, sustainable future for the citizens of Tavares.
In recognition of the economic needs of the community, it is the policy and intent of Tavares City Council to implement economic development incentives designed to encourage new businesses to relocate to Tavares and existing businesses to expand, creating more jobs and sustainable economic growth.
(Ord. No. 2022-14, § 1(Exh. A), 9-21-22)
Article VII, Section 3, of the Constitution of the State of Florida and Section 196.1995, Florida Statutes, empowers the City to grant Economic Development Ad Valorem Tax Exemptions to New Businesses and Expansions of Existing Businesses after the electors of the City, voting on the question in a referendum, authorize such exemptions.
(a)
It is a recognized function of local government to promote economic development within its jurisdiction by providing financial incentives that will encourage new businesses to relocate within its jurisdiction and existing businesses to expand creating employment opportunities that will benefit the entire community.
(b)
The current economic climate has resulted in a high unemployment rate in City of Tavares, impacting the quality of life for the city's citizens and the sustainability of local businesses.
(c)
On November 4 th , 2008, a voter referendum was passed that authorized the City Council of the City of Tavares to grant, pursuant to Article VII, Section 3, of the Constitution of the State of Florida, property tax exemptions to new businesses and expansions of existing businesses.
(d)
In order to ensure that applications for an Economic Development Ad Valorem Tax Exemption are considered in a non-arbitrary and non-discriminatory manner, it is necessary to establish guidelines that reflect the City Council's economic development policy to assist the City Council in making its determinations.
(e)
Applications for an Economic Development Ad Valorem Tax Exemption shall be considered by the City Council in its legislative capacity on a case-by-case basis, after considering the Property Appraiser's report and the review criteria.
(f)
No precedent shall be implied or inferred by the granting of an exemption to a new or expanding business.
The following words, phrases, and terms shall have the same meanings attributed to them in current Florida Statutes and the Florida Administrative Code, except where indicated otherwise:
Applicant — Any person, firm, partnership, or corporation who files an application with the City seeking an Economic Development Ad Valorem Tax Exemption.
Business — Any for-profit activity engaged in by any person, firm, partnership, corporation, or other business organization or entity.
City — City of Tavares, Florida
Council — City Council for the City of Tavares
Department — The Florida Department of Revenue.
Economic Development Ad Valorem Tax Exemption — ad valorem tax exemption granted by the Council in its discretion to a qualifying New Business and/or an Expansion of an Existing Business for up to 100% of the City ad valorem tax levied on the qualifying property of said Business for a period up to ten (10) years; provided, however, the exemption shall not apply to taxes levied for the payment of bonds or taxes authorized by a vote of the electors pursuant to Section 9 and Section 12, Article VII of the State Constitution.
Enterprise Zone — An area designated as an enterprise zone pursuant to Section 290.0065, Florida Statutes.
Expansion of an Existing Business —
(1)
A business establishing ten (10) or more jobs to employ ten (10) or more full-time employees in the City which manufactures, processes, compounds, fabricates, or produces for sale items of tangible personal property at a fixed location and which comprises an industrial or manufacturing plant; or
(2)
A business establishing twenty-five (25) or more jobs to employ twenty-five (25) or more full-time employees in the City, the sales factor for which, as defined in this Section, is less than fifty (50%) percent inside the Metropolitan Statistical Area for each year the exemption is claimed; provided that such business increases operations on a site co-located with a commercial or industrial operation owned by the same business, resulting in a net increase in employment of not less than ten (10%) percent or an increase in productive output of not less than ten (10%) percent.
Goods — All personal property when purchased primarily for personal, family, or household use, but not including personal property sold for commercial or industrial use.
Improvements — Physical changes made to raw land, and structures placed on or under the land surface.
Metropolitan Statistical Area (MSA) — Refers to a geographical region with a relatively high population density at its core and close economic ties throughout the area. Such areas are not legally incorporated. For purposes of this Section, the MSA includes Lake, Sumter and Orange counties.
New Business —
(1)
A business establishing ten (10) or more jobs to employ ten (10) or more full-time employees in the City which manufactures, processes, compounds, fabricates, or produces for sale items of tangible personal property at a fixed location and which comprises an industrial or manufacturing plant; or
(2)
A business establishing twenty-five (25) or more jobs to employ twenty-five (25) or more full-time employees in the City, the sales factor for which, as defined in this Section, herein, is less than fifty (50%) percent inside the Metropolitan Statistical Area for each year the exemption is claimed; or
(3)
An office space in the City leased or owned and used by a corporation newly domiciled in the City; provided such office space houses fifty (50) or more full-time employees of such corporation; provided that such business or office first begins operation on a site clearly separate from any other commercial or industrial operation owned by the same business; or
(4)
Any business located in an enterprise zone (pursuant to Section 290.0065, Florida Statutes) and creating new full-time jobs in accordance with the business disciplines identified above.
Sales Factor — The sales factor is a fraction the numerator of which is the total sales of the taxpayer in the MSA during the taxable year or period and the denominator of which is the total sales of the taxpayer everywhere during the taxable year or period.
(a)
There is herein established an Economic Development Ad Valorem Tax Exemption (hereinafter the "Exemption") for ad valorem taxes levied by the City. The Exemption is a local option tax incentive for a qualifying New Business or Expansion to an Existing Business which may be granted or refused at the sole discretion of Council.
(b)
The Exemption shall not accrue to Improvements to real property made by or for the use of a qualifying New Business or Expansion to an Existing Business when such Improvements have been included on the tax rolls prior to the effective date of the ordinance specifically granting a Business an Exemption.
(c)
At the discretion of the Board, the Exemption may be granted for up to one hundred (100%) percent of the assessed value of all Improvements to real property made by or for the use of a qualifying New Business and of all tangible personal property of such New Business, or up to one hundred (100%) percent of the assessed value of all added Improvements to real property made to facilitate the qualifying Expansion of an Existing Business and of the net increase in all tangible personal property acquired to facilitate such Expansion of an Existing Business, provided that the Improvements to real property are made or the tangible personal property is added or increased on or after the day the Ordinance granting the Exemption is adopted. Property acquired to replace existing property shall not be considered to facilitate a business expansion.
(d)
No Exemption shall be granted for the land upon which a New Business or Expansion of an Existing Business is to be located.
(e)
Any Exemption granted for a New Business or Expansion of an Existing Business is non-transferable between businesses; provided, however, if the only change to the Business is one of ownership and all other provisions of the original Application remain in effect, the Exemption may be transferred, subject to compliance with Section 23-10.
(a)
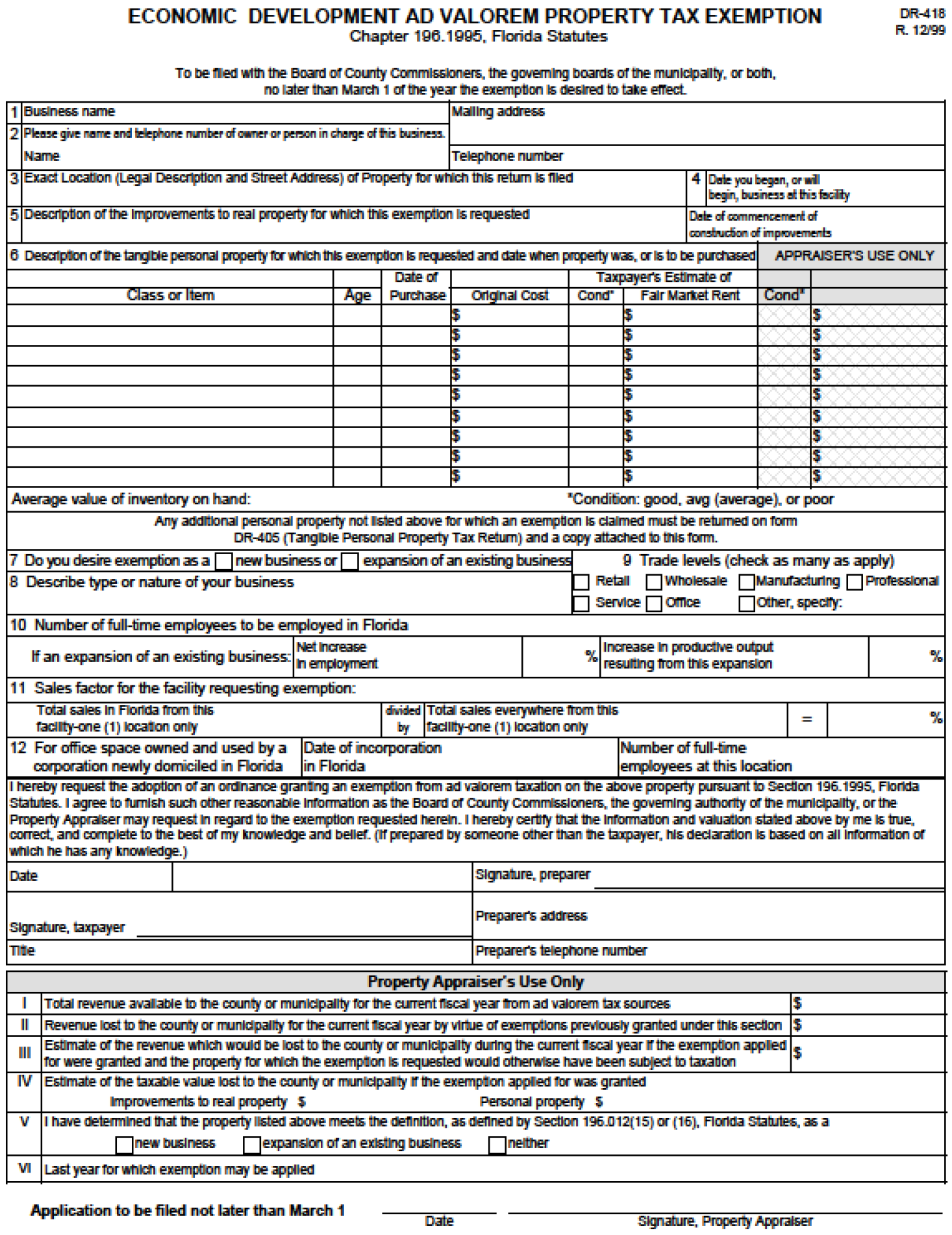
Application — Any eligible person, firm, partnership or corporation which desires an Economic Development Ad Valorem Tax Exemption shall file with Council a written application prescribed by the Department as set forth in Exhibit "B" of this section. The Application must be filed no later than March 1 of the year the exemption is desired to take effect.
(b)
Review — Upon submittal of the Application, the City Administrator or his designee shall review same and, within ten (10) days of submission, notify the Applicant of any facial deficiencies. Complete Applications shall be scheduled for a public hearing before Council no later than 45 days following receipt of a complete Application. The 45-day period shall include the Property Appraiser's review pursuant to Section 23-8(a). Applicant will be notified of the date and time of the public hearing.
(c)
Agreement — A Business will be required to enter into an agreement with the City stating that the Business will satisfy the Business Maintenance and Continued Performance Conditions set forth in the Application.
(a)
Property Appraiser Review — Before Council takes action on an Application, a copy of the Application, once deemed complete, shall be delivered to the Property Appraiser for review. Within fifteen (15) days of receipt of the complete Application, the Property Appraiser shall provide a report to Council, which shall include the following:
(1)
The total revenue available to the City for the current fiscal year from ad valorem tax sources or an estimate of such revenue if the actual total available revenue cannot be determined;
(2)
The amount of revenue lost to the City for the current fiscal year by virtue of exemptions previously granted, or an estimate of such revenue if the actual revenue lost cannot be determined;
(3)
An estimate of the amount of revenue which would be lost to the City for the current fiscal year if the exemption applied for was granted had the property for which the exemption is requested otherwise been subject to taxation; and
(4)
A determination as to whether the property for which an exemption is requested is to be incorporated into a New Business or the Expansion of an Existing Business, or into neither, which determination the Property Appraiser shall also affix to the face of the application. Upon request, the Department will provide the Property Appraiser such information as it may have available to assist in making this determination.
(b)
Eligibility Threshold — The threshold for eligibility is whether the Business meets the definition of a New Business or of an Expansion of an Existing Business as provided in Section 23-5.
(c)
Economic Development Policy Guidelines — In making its determination as to whether to grant the Exemption, and, if granted, the duration and percentage of the Exemption, Council shall consider the following factors:
(1)
Number of current and projected employees of the Business located in the City
(2)
Average Wage of Employees of the Business located in the City.
(3)
Amount of Capital Investment.
(4)
Net positive contribution to the local economy
In addition to the above factors, Council may consider any such other activity or factor that promotes the sustainability of Economic Development within the City.
(d)
Ordinance — After consideration of the Application and the Property Appraiser's review, the Economic Development Policy Guidelines, and such other information it deems relevant, Council may choose to adopt an ordinance granting the Exemption to the Applicant for up to 100 percent of the assessed value of the qualifying property for up to 10 years. If granted, the ordinance shall include the following information:
(1)
The name and address of the New Business or the Expansion of an Existing Business;
(2)
The name of the owner(s) of the New Business or the Expansion of an Existing Business;
(3)
The total amount of revenue available to the City from ad valorem tax sources for the current fiscal year, the total amount of the revenue lost to the City for the current fiscal year by virtue of exemptions currently in effect, and the estimated amount of revenue attributable to the Exemption granted to the new or expanding business;
(4)
The expiration date of the Exemption, which is (10) ten years or less (depending upon the duration of the Exemption granted) from the date Council enacts the Ordinance granting the Exemption; and
(5)
A finding that the business meets the definition of a New Business or an Expansion of an Existing Business as set forth in Section 23-5 herein.
No fees shall be charged for processing the Exemption Application or any Exemption Ordinance adopted by Council.
(a)
Change in ownership
(1)
The Business granted the Exemption shall be required to inform Council in writing within ten (10) days as to any changes in ownership of the Business granted an Exemption.
(2)
Failure of the Business granted an Exemption to notify Council in writing of any such changes in ownership is cause for revocation of the Ordinance granting the Exemption, at Council's discretion.
(b)
Annual Filings- The Applicant shall be required to submit an Annual Renewal Statement and an Annual Report to the City's Finance Director on or before March 1 st of each year for which the Exemption was granted. The Applicant shall also timely comply with all filings required pursuant to Section 196.011, Florida Statutes.
(1)
The Annual Renewal Statement shall certify that information provided in the original Application has not changed.
(2)
The Annual Report shall provide a report on the status of the Business, evidencing satisfaction of the Business Maintenance and Continued Performance conditions set forth in the Application.
Should any Business granted an Exemption pursuant to this Section fail to file the Annual Renewal Statement and/or Annual Report with Council on or before March 1 st of each year the Exemption has been granted as required in Section 23-10 of this Section [Chapter], fail to continue to meet the definition of a New Business or an Expansion of an Existing Business as set forth herein, fail to timely file a written report of change of ownership and/or fail to file a new Application upon any other change in the information provided in the original Application, and/or fail to fulfill any other representation made to Council during the Application process, including the creation and maintenance of the total number of new jobs identified by a business in the Application, the Council, may, upon 30 days written notice to the respective Business, adopt an ordinance revoking the ad valorem tax exemption or take such other action with respect to the Exemption it deems appropriate.
(a)
Notification — Upon Revocation, Council shall immediately notify the Property Appraiser.
(b)
Recover Taxes — If it is determined that for any year within the Exemption period the owner was not entitled to receive such Exemption, the owner of the property shall be subject to the taxes exempted as a result of such failure plus annual interest at the maximum rate allowed by law.
(c)
Reapply — Nothing herein shall prohibit a business from reapplying for an ad valorem tax exemption pursuant to State law.
The provisions of this section shall be applicable within the municipal boundaries of the City of Tavares.
Pursuant to Section 196.1995, Florida Statutes, these provisions of this section shall expire on November 4, 2018, ten (10) years after the date such authority to grant Economic Development Ad Valorem Tax Exemptions was approved by the electors of the City of Tavares in a referendum. No business shall be allowed to begin receiving such Exemption after that date; however, the expiration shall not affect the operation of any Exemption for which a business has qualified under this section prior to November 4, 2018.
Editor's note— Ord. No. 2015-25, § 1, adopted January 20, 2016, repealed § 23-14 in its entirety and enacted a new §§ 23-14(a) and 23-14(b). Former § 23-14 pertained to "Impact Fee Waivers," and was derived from Original Land Development Regulations Code and Ord. No. 2015-11, § 1, adopted June 3, 2015.
City Council may waive City Impact Fees for the development of a large seaplane commercial enterprise. For purposes of this ordinance, a "large seaplane commercial enterprise" shall mean:
(a)
A commercial or industrial enterprise engaged in the sale, manufacture, production, assembly, marketing or passenger service of or for seaplanes, or their components, which either:
(i)
Is subject to Capital Charges (Impact Fees) in excess of twenty-five (25) ERUs as defined under Section 17-36 of these regulations; or which
(ii)
Employs twenty-five (25) or more full time employees at its Tavares location as part of its commercial enterprise.
(Ord. No. 2015-25, § 1, 1-20-16)
An impact fee deferral program is authorized by City Council to provide an economic incentive for the development of large multi-family projects.
For the purposes of this ordinance, a "large multi-family dwelling development" shall mean:
(a)
A Development consisting of over one hundred (100) rental attached dwelling units that are permitted simultaneously and constructed in one (1) phase.
(b)
Accessory or subordinate commercial uses attached to the Development shall not be eligible for this deferral.
Terms and Conditions for the Deferral Program:
(a)
Payment of fifty (50%) percent of all currently applicable city impact fees prior to the issuance of the Certificate of Occupancy or Certificate of Completion associated with each issued permit.
(b)
Balance of impact fees to be paid in full within twenty-four (24) months of permit issuance.
(c)
Current Federal interest rate will be applied to the remaining balance of impact fees for the twenty-four (24) month deferral period or until the remaining impact fees are paid.
(d)
Developer is required to post an irrevocable letter of credit in a form approved by the City's Finance Director for an amount equal to the deferred impact fee balance valid until paid in full.
(Ord. No. 2015-25, § 1, 1-20-16; Ord. No. 2020-04, § 1, 5-6-20)
City Council, as an economic development incentive, may authorize the deferral of payment of non-residential building permit fees payable under Section 24-1 of the City's Land Development Regulations for a period of six (6) months or until the issuance of a certificate of occupancy or completion for which the permit was issued, whichever occurs first.
The following words, terms and phrases, when used in this chapter, shall have the meanings ascribed to them in this section, except where the context clearly indicates a different meaning.
City means the City of Tavares, Florida.
Council means the City Council of the City of Tavares, Florida.
City-owned civic or office construction project means city-owned buildings providing a public gathering place or office facilities.
Construction means any project associated with the creation, development, or erection of any building eligible for the program.
FGBC means the Florida Green Building Coalition.
GHDS means the Green Home Designation Standard of the Florida Green Building Coalition.
Green building means generally the resource efficient design, construction, and operation of buildings by employing environmentally sensible construction practices, systems, and materials.
Independent or independent of the city means not employed by, or acting as agents of the city.
L.E.E.D. 2.0 means the Leadership in Energy and Environmental Design Rating System, Version 2.0, of the U.S. Green Building Council.
Municipal means owned by the city.
Private means property not owned by the city.
Program means the city green building program.
Program certification means the final designation awarded to a program participant for satisfying all requirements associated with the program for a particular project.
Program participant means any person or entity seeking program certification for a particular project.
Project means any construction associated with the creation, development, or erection of any building eligible for the program.
Project application form means the form submitted to the building inspection department indicating that a program participant is interested in participating in the program for a particular project.
Sub-program means any area of construction covered by the program.
USGBC means the U.S. Green Building Council.
(Ord. No. 2022-14, § 1(Exh. A), 9-21-22)
The purpose of the program shall be to provide the city community with a certification- based "green building" program. It is expected that city owned civic or office construction projects will follow the program guidelines, unless the City Council determines that the cost (e.g. time, function, or funding) associated with participating in the Program significantly outweighs the benefits. This program will be voluntary for all others. This program will promote sustainable and environmentally-friendly practices of construction and design.
(Ord. No. 2022-14, § 1(Exh. A), 9-21-22)
The program shall be administered by the City's Community Development Department which shall be responsible for:
(1)
Funding the program through annual funds budgeted and appropriated by the City Council;
(2)
Marketing the program to the Tavares community by any reasonably effective means, including but not limited to print advertising, press releases, television advertising, or advertising in monthly mailers;
(3)
Developing any appropriate or necessary application procedures, including but not limited to, the program application form;
(4)
Providing an incentive award to any program participant who has successfully satisfied the requirements associated with that incentive.
(Ord. No. 2022-14, § 1(Exh. A), 9-21-22)
(a)
For all non-city projects, the program shall be voluntary.
(b)
For any city-owned civic or office construction project, the city is expected to participate in the program unless the City Council determines that the cost (e.g. time, function, or funding) associated with participating in the program significantly outweighs the benefits of participating in the program to the city.
(c)
The City's Community Development Director and Director of Finance or their designees shall develop policies and procedures to implement the green building program.
(Ord. No. 2022-14, § 1(Exh. A), 9-21-22)
The program shall be administered on a per-unit basis. For the purpose of this section of the program, "per-unit" means each unit built, except that any multi-family dwelling or similarly clustered structure may count as one unit, as determined by the Community Development Director or their designee(s).
(Ord. No. 2022-14, § 1(Exh. A), 9-21-22)
The program shall be comprised of the following sub-programs:
(1)
New residential construction;
(2)
Residential retrofitting/remodeling;
(3)
New commercial/non-city construction, not including any expansions or remodeling; and
(4)
City-owned civic or office construction, not including any expansions or remodeling.
(Ord. No. 2022-14, § 1(Exh. A), 9-21-22)
The program shall be administered using standards for certification developed by the Florida Green Building Coalition and the U.S. Green Building Council. These standards shall apply to each sub-program as follows:
(1)
GHDS. For any program participant seeking program certification for new residential construction the program participant must satisfy all of the requirements associated with the current Green Home Designation Standard of the FGBC, including but not limited to, any monetary or certification requirements. For the purpose of this section of the program, "current" means at the time a program participant submits a project application form with the building inspection department.
(2)
L.E.E.D. 2.0. For any program participant seeking program certification for new commercial/non-city construction or new municipal civic or office construction, the program participant must satisfy all of the requirements associated with the L.E.E.D. 2.0, including but not limited to any monetary or certification requirements.
(3)
Review. For the purpose of this section of the program, a program participant shall be bound by the standard designated for a particular sub-program unless the program participant both requests to be certified under a more current version of a designated standard and the request is approved by the city department responsible for administering the particular program.
(Ord. No. 2022-14, § 1(Exh. A), 9-21-22)
The Program shall consist of incentives designed to encourage the use of the Program. For any program participant seeking program certification for new residential construction, residential etrofitting/remodeling and new commercial non-city construction the City government shall provide the following incentives:
(1)
Reduced permitting fee, which shall equal 50 percent of the fee required for a non-program participant, subject to availability of funds;
(2)
Marketing for all sub-programs. For any program participant seeking program certification for new residential construction, residential retrofitting/remodeling or new commercial/non-city construction the City shall provide the following marketing incentives, including but not limited to:
a)
The erection of building site signs designating a project under the Program;
b)
The inclusion of program participants on a City webpage dedicated to the Program;
c)
The creation of promotional packages, such as a program logo for a program participant's advertisements or brochures;
d)
Press releases when the program participant receives certification.
(3)
Green Building Award. For the purpose of publicly recognizing outstanding commitment to "green building" the Program shall provide for an award called the "Green Building Award" to be awarded annually by the City Council.
(Ord. No. 2022-14, § 1(Exh. A), 9-21-22)
The program shall be subject to certification by a qualified third party who has been trained and certified as a green building rater. For the purpose of this section of the program, "third party" means any person or entity authorized by the FGBC or the USGBC to verify that a program participant has satisfied any or all of the requirements associated with the standard designated for a particular project.
(Ord. No. 2022-14, § 1(Exh. A), 9-21-22)
(1)
Staff review. The City's Community Development Department shall initiate a review of the Program as necessary to determine the need for change in the program to increase its effectiveness.
(2)
Frequency. The program shall be subject to review one year after the effective date of this ordinance and thereafter at a frequency of no more than once per year.
(3)
Purpose. The purpose of reviewing the Program includes but is not limited to updating program incentives, recommending program or market changes, reviewing suggestions made by program participants, and annually awarding the Green Building Award.
(Ord. No. 2022-14, § 1(Exh. A), 9-21-22)
COMMUNITY ECONOMIC DEVELOPMENT INITIATIVES
Editor's note— Ord. No. 2015-25, § 1, adopted January 20, 2016, amended the title of div. III, to read as set out herein. Previously div. III was titled "Impact Fee Waivers."
Note— City Council, as an economic development incentive, may from time to time authorize the waiver, deferral or reduction of city impact fees due under the terms of Chapter 6 of the City's Code of Ordinances and under the terms of Section 17.39 of these regulations.
The City of Tavares recognizes that there is a demonstrated need to promote economic activity in the City by providing economic incentives that will encourage diverse new businesses to relocate to the city and current businesses to expand in order to provide a stronger, more balanced and stable economy in the City.
Businesses that provide a net positive contribution to the economy, provide an above-average wage to its employees and have a commitment to local employees are vital to the economy of Tavares and to the welfare of its citizens and need to be encouraged to relocate or to expand in the City so as to provide an economically sound, sustainable future for the citizens of Tavares.
In recognition of the economic needs of the community, it is the policy and intent of Tavares City Council to implement economic development incentives designed to encourage new businesses to relocate to Tavares and existing businesses to expand, creating more jobs and sustainable economic growth.
(Ord. No. 2022-14, § 1(Exh. A), 9-21-22)
Article VII, Section 3, of the Constitution of the State of Florida and Section 196.1995, Florida Statutes, empowers the City to grant Economic Development Ad Valorem Tax Exemptions to New Businesses and Expansions of Existing Businesses after the electors of the City, voting on the question in a referendum, authorize such exemptions.
(a)
It is a recognized function of local government to promote economic development within its jurisdiction by providing financial incentives that will encourage new businesses to relocate within its jurisdiction and existing businesses to expand creating employment opportunities that will benefit the entire community.
(b)
The current economic climate has resulted in a high unemployment rate in City of Tavares, impacting the quality of life for the city's citizens and the sustainability of local businesses.
(c)
On November 4 th , 2008, a voter referendum was passed that authorized the City Council of the City of Tavares to grant, pursuant to Article VII, Section 3, of the Constitution of the State of Florida, property tax exemptions to new businesses and expansions of existing businesses.
(d)
In order to ensure that applications for an Economic Development Ad Valorem Tax Exemption are considered in a non-arbitrary and non-discriminatory manner, it is necessary to establish guidelines that reflect the City Council's economic development policy to assist the City Council in making its determinations.
(e)
Applications for an Economic Development Ad Valorem Tax Exemption shall be considered by the City Council in its legislative capacity on a case-by-case basis, after considering the Property Appraiser's report and the review criteria.
(f)
No precedent shall be implied or inferred by the granting of an exemption to a new or expanding business.
The following words, phrases, and terms shall have the same meanings attributed to them in current Florida Statutes and the Florida Administrative Code, except where indicated otherwise:
Applicant — Any person, firm, partnership, or corporation who files an application with the City seeking an Economic Development Ad Valorem Tax Exemption.
Business — Any for-profit activity engaged in by any person, firm, partnership, corporation, or other business organization or entity.
City — City of Tavares, Florida
Council — City Council for the City of Tavares
Department — The Florida Department of Revenue.
Economic Development Ad Valorem Tax Exemption — ad valorem tax exemption granted by the Council in its discretion to a qualifying New Business and/or an Expansion of an Existing Business for up to 100% of the City ad valorem tax levied on the qualifying property of said Business for a period up to ten (10) years; provided, however, the exemption shall not apply to taxes levied for the payment of bonds or taxes authorized by a vote of the electors pursuant to Section 9 and Section 12, Article VII of the State Constitution.
Enterprise Zone — An area designated as an enterprise zone pursuant to Section 290.0065, Florida Statutes.
Expansion of an Existing Business —
(1)
A business establishing ten (10) or more jobs to employ ten (10) or more full-time employees in the City which manufactures, processes, compounds, fabricates, or produces for sale items of tangible personal property at a fixed location and which comprises an industrial or manufacturing plant; or
(2)
A business establishing twenty-five (25) or more jobs to employ twenty-five (25) or more full-time employees in the City, the sales factor for which, as defined in this Section, is less than fifty (50%) percent inside the Metropolitan Statistical Area for each year the exemption is claimed; provided that such business increases operations on a site co-located with a commercial or industrial operation owned by the same business, resulting in a net increase in employment of not less than ten (10%) percent or an increase in productive output of not less than ten (10%) percent.
Goods — All personal property when purchased primarily for personal, family, or household use, but not including personal property sold for commercial or industrial use.
Improvements — Physical changes made to raw land, and structures placed on or under the land surface.
Metropolitan Statistical Area (MSA) — Refers to a geographical region with a relatively high population density at its core and close economic ties throughout the area. Such areas are not legally incorporated. For purposes of this Section, the MSA includes Lake, Sumter and Orange counties.
New Business —
(1)
A business establishing ten (10) or more jobs to employ ten (10) or more full-time employees in the City which manufactures, processes, compounds, fabricates, or produces for sale items of tangible personal property at a fixed location and which comprises an industrial or manufacturing plant; or
(2)
A business establishing twenty-five (25) or more jobs to employ twenty-five (25) or more full-time employees in the City, the sales factor for which, as defined in this Section, herein, is less than fifty (50%) percent inside the Metropolitan Statistical Area for each year the exemption is claimed; or
(3)
An office space in the City leased or owned and used by a corporation newly domiciled in the City; provided such office space houses fifty (50) or more full-time employees of such corporation; provided that such business or office first begins operation on a site clearly separate from any other commercial or industrial operation owned by the same business; or
(4)
Any business located in an enterprise zone (pursuant to Section 290.0065, Florida Statutes) and creating new full-time jobs in accordance with the business disciplines identified above.
Sales Factor — The sales factor is a fraction the numerator of which is the total sales of the taxpayer in the MSA during the taxable year or period and the denominator of which is the total sales of the taxpayer everywhere during the taxable year or period.
(a)
There is herein established an Economic Development Ad Valorem Tax Exemption (hereinafter the "Exemption") for ad valorem taxes levied by the City. The Exemption is a local option tax incentive for a qualifying New Business or Expansion to an Existing Business which may be granted or refused at the sole discretion of Council.
(b)
The Exemption shall not accrue to Improvements to real property made by or for the use of a qualifying New Business or Expansion to an Existing Business when such Improvements have been included on the tax rolls prior to the effective date of the ordinance specifically granting a Business an Exemption.
(c)
At the discretion of the Board, the Exemption may be granted for up to one hundred (100%) percent of the assessed value of all Improvements to real property made by or for the use of a qualifying New Business and of all tangible personal property of such New Business, or up to one hundred (100%) percent of the assessed value of all added Improvements to real property made to facilitate the qualifying Expansion of an Existing Business and of the net increase in all tangible personal property acquired to facilitate such Expansion of an Existing Business, provided that the Improvements to real property are made or the tangible personal property is added or increased on or after the day the Ordinance granting the Exemption is adopted. Property acquired to replace existing property shall not be considered to facilitate a business expansion.
(d)
No Exemption shall be granted for the land upon which a New Business or Expansion of an Existing Business is to be located.
(e)
Any Exemption granted for a New Business or Expansion of an Existing Business is non-transferable between businesses; provided, however, if the only change to the Business is one of ownership and all other provisions of the original Application remain in effect, the Exemption may be transferred, subject to compliance with Section 23-10.
(a)
Application — Any eligible person, firm, partnership or corporation which desires an Economic Development Ad Valorem Tax Exemption shall file with Council a written application prescribed by the Department as set forth in Exhibit "B" of this section. The Application must be filed no later than March 1 of the year the exemption is desired to take effect.
(b)
Review — Upon submittal of the Application, the City Administrator or his designee shall review same and, within ten (10) days of submission, notify the Applicant of any facial deficiencies. Complete Applications shall be scheduled for a public hearing before Council no later than 45 days following receipt of a complete Application. The 45-day period shall include the Property Appraiser's review pursuant to Section 23-8(a). Applicant will be notified of the date and time of the public hearing.
(c)
Agreement — A Business will be required to enter into an agreement with the City stating that the Business will satisfy the Business Maintenance and Continued Performance Conditions set forth in the Application.
(a)
Property Appraiser Review — Before Council takes action on an Application, a copy of the Application, once deemed complete, shall be delivered to the Property Appraiser for review. Within fifteen (15) days of receipt of the complete Application, the Property Appraiser shall provide a report to Council, which shall include the following:
(1)
The total revenue available to the City for the current fiscal year from ad valorem tax sources or an estimate of such revenue if the actual total available revenue cannot be determined;
(2)
The amount of revenue lost to the City for the current fiscal year by virtue of exemptions previously granted, or an estimate of such revenue if the actual revenue lost cannot be determined;
(3)
An estimate of the amount of revenue which would be lost to the City for the current fiscal year if the exemption applied for was granted had the property for which the exemption is requested otherwise been subject to taxation; and
(4)
A determination as to whether the property for which an exemption is requested is to be incorporated into a New Business or the Expansion of an Existing Business, or into neither, which determination the Property Appraiser shall also affix to the face of the application. Upon request, the Department will provide the Property Appraiser such information as it may have available to assist in making this determination.
(b)
Eligibility Threshold — The threshold for eligibility is whether the Business meets the definition of a New Business or of an Expansion of an Existing Business as provided in Section 23-5.
(c)
Economic Development Policy Guidelines — In making its determination as to whether to grant the Exemption, and, if granted, the duration and percentage of the Exemption, Council shall consider the following factors:
(1)
Number of current and projected employees of the Business located in the City
(2)
Average Wage of Employees of the Business located in the City.
(3)
Amount of Capital Investment.
(4)
Net positive contribution to the local economy
In addition to the above factors, Council may consider any such other activity or factor that promotes the sustainability of Economic Development within the City.
(d)
Ordinance — After consideration of the Application and the Property Appraiser's review, the Economic Development Policy Guidelines, and such other information it deems relevant, Council may choose to adopt an ordinance granting the Exemption to the Applicant for up to 100 percent of the assessed value of the qualifying property for up to 10 years. If granted, the ordinance shall include the following information:
(1)
The name and address of the New Business or the Expansion of an Existing Business;
(2)
The name of the owner(s) of the New Business or the Expansion of an Existing Business;
(3)
The total amount of revenue available to the City from ad valorem tax sources for the current fiscal year, the total amount of the revenue lost to the City for the current fiscal year by virtue of exemptions currently in effect, and the estimated amount of revenue attributable to the Exemption granted to the new or expanding business;
(4)
The expiration date of the Exemption, which is (10) ten years or less (depending upon the duration of the Exemption granted) from the date Council enacts the Ordinance granting the Exemption; and
(5)
A finding that the business meets the definition of a New Business or an Expansion of an Existing Business as set forth in Section 23-5 herein.
No fees shall be charged for processing the Exemption Application or any Exemption Ordinance adopted by Council.
(a)
Change in ownership
(1)
The Business granted the Exemption shall be required to inform Council in writing within ten (10) days as to any changes in ownership of the Business granted an Exemption.
(2)
Failure of the Business granted an Exemption to notify Council in writing of any such changes in ownership is cause for revocation of the Ordinance granting the Exemption, at Council's discretion.
(b)
Annual Filings- The Applicant shall be required to submit an Annual Renewal Statement and an Annual Report to the City's Finance Director on or before March 1 st of each year for which the Exemption was granted. The Applicant shall also timely comply with all filings required pursuant to Section 196.011, Florida Statutes.
(1)
The Annual Renewal Statement shall certify that information provided in the original Application has not changed.
(2)
The Annual Report shall provide a report on the status of the Business, evidencing satisfaction of the Business Maintenance and Continued Performance conditions set forth in the Application.
Should any Business granted an Exemption pursuant to this Section fail to file the Annual Renewal Statement and/or Annual Report with Council on or before March 1 st of each year the Exemption has been granted as required in Section 23-10 of this Section [Chapter], fail to continue to meet the definition of a New Business or an Expansion of an Existing Business as set forth herein, fail to timely file a written report of change of ownership and/or fail to file a new Application upon any other change in the information provided in the original Application, and/or fail to fulfill any other representation made to Council during the Application process, including the creation and maintenance of the total number of new jobs identified by a business in the Application, the Council, may, upon 30 days written notice to the respective Business, adopt an ordinance revoking the ad valorem tax exemption or take such other action with respect to the Exemption it deems appropriate.
(a)
Notification — Upon Revocation, Council shall immediately notify the Property Appraiser.
(b)
Recover Taxes — If it is determined that for any year within the Exemption period the owner was not entitled to receive such Exemption, the owner of the property shall be subject to the taxes exempted as a result of such failure plus annual interest at the maximum rate allowed by law.
(c)
Reapply — Nothing herein shall prohibit a business from reapplying for an ad valorem tax exemption pursuant to State law.
The provisions of this section shall be applicable within the municipal boundaries of the City of Tavares.
Pursuant to Section 196.1995, Florida Statutes, these provisions of this section shall expire on November 4, 2018, ten (10) years after the date such authority to grant Economic Development Ad Valorem Tax Exemptions was approved by the electors of the City of Tavares in a referendum. No business shall be allowed to begin receiving such Exemption after that date; however, the expiration shall not affect the operation of any Exemption for which a business has qualified under this section prior to November 4, 2018.
Editor's note— Ord. No. 2015-25, § 1, adopted January 20, 2016, repealed § 23-14 in its entirety and enacted a new §§ 23-14(a) and 23-14(b). Former § 23-14 pertained to "Impact Fee Waivers," and was derived from Original Land Development Regulations Code and Ord. No. 2015-11, § 1, adopted June 3, 2015.
City Council may waive City Impact Fees for the development of a large seaplane commercial enterprise. For purposes of this ordinance, a "large seaplane commercial enterprise" shall mean:
(a)
A commercial or industrial enterprise engaged in the sale, manufacture, production, assembly, marketing or passenger service of or for seaplanes, or their components, which either:
(i)
Is subject to Capital Charges (Impact Fees) in excess of twenty-five (25) ERUs as defined under Section 17-36 of these regulations; or which
(ii)
Employs twenty-five (25) or more full time employees at its Tavares location as part of its commercial enterprise.
(Ord. No. 2015-25, § 1, 1-20-16)
An impact fee deferral program is authorized by City Council to provide an economic incentive for the development of large multi-family projects.
For the purposes of this ordinance, a "large multi-family dwelling development" shall mean:
(a)
A Development consisting of over one hundred (100) rental attached dwelling units that are permitted simultaneously and constructed in one (1) phase.
(b)
Accessory or subordinate commercial uses attached to the Development shall not be eligible for this deferral.
Terms and Conditions for the Deferral Program:
(a)
Payment of fifty (50%) percent of all currently applicable city impact fees prior to the issuance of the Certificate of Occupancy or Certificate of Completion associated with each issued permit.
(b)
Balance of impact fees to be paid in full within twenty-four (24) months of permit issuance.
(c)
Current Federal interest rate will be applied to the remaining balance of impact fees for the twenty-four (24) month deferral period or until the remaining impact fees are paid.
(d)
Developer is required to post an irrevocable letter of credit in a form approved by the City's Finance Director for an amount equal to the deferred impact fee balance valid until paid in full.
(Ord. No. 2015-25, § 1, 1-20-16; Ord. No. 2020-04, § 1, 5-6-20)
City Council, as an economic development incentive, may authorize the deferral of payment of non-residential building permit fees payable under Section 24-1 of the City's Land Development Regulations for a period of six (6) months or until the issuance of a certificate of occupancy or completion for which the permit was issued, whichever occurs first.
The following words, terms and phrases, when used in this chapter, shall have the meanings ascribed to them in this section, except where the context clearly indicates a different meaning.
City means the City of Tavares, Florida.
Council means the City Council of the City of Tavares, Florida.
City-owned civic or office construction project means city-owned buildings providing a public gathering place or office facilities.
Construction means any project associated with the creation, development, or erection of any building eligible for the program.
FGBC means the Florida Green Building Coalition.
GHDS means the Green Home Designation Standard of the Florida Green Building Coalition.
Green building means generally the resource efficient design, construction, and operation of buildings by employing environmentally sensible construction practices, systems, and materials.
Independent or independent of the city means not employed by, or acting as agents of the city.
L.E.E.D. 2.0 means the Leadership in Energy and Environmental Design Rating System, Version 2.0, of the U.S. Green Building Council.
Municipal means owned by the city.
Private means property not owned by the city.
Program means the city green building program.
Program certification means the final designation awarded to a program participant for satisfying all requirements associated with the program for a particular project.
Program participant means any person or entity seeking program certification for a particular project.
Project means any construction associated with the creation, development, or erection of any building eligible for the program.
Project application form means the form submitted to the building inspection department indicating that a program participant is interested in participating in the program for a particular project.
Sub-program means any area of construction covered by the program.
USGBC means the U.S. Green Building Council.
(Ord. No. 2022-14, § 1(Exh. A), 9-21-22)
The purpose of the program shall be to provide the city community with a certification- based "green building" program. It is expected that city owned civic or office construction projects will follow the program guidelines, unless the City Council determines that the cost (e.g. time, function, or funding) associated with participating in the Program significantly outweighs the benefits. This program will be voluntary for all others. This program will promote sustainable and environmentally-friendly practices of construction and design.
(Ord. No. 2022-14, § 1(Exh. A), 9-21-22)
The program shall be administered by the City's Community Development Department which shall be responsible for:
(1)
Funding the program through annual funds budgeted and appropriated by the City Council;
(2)
Marketing the program to the Tavares community by any reasonably effective means, including but not limited to print advertising, press releases, television advertising, or advertising in monthly mailers;
(3)
Developing any appropriate or necessary application procedures, including but not limited to, the program application form;
(4)
Providing an incentive award to any program participant who has successfully satisfied the requirements associated with that incentive.
(Ord. No. 2022-14, § 1(Exh. A), 9-21-22)
(a)
For all non-city projects, the program shall be voluntary.
(b)
For any city-owned civic or office construction project, the city is expected to participate in the program unless the City Council determines that the cost (e.g. time, function, or funding) associated with participating in the program significantly outweighs the benefits of participating in the program to the city.
(c)
The City's Community Development Director and Director of Finance or their designees shall develop policies and procedures to implement the green building program.
(Ord. No. 2022-14, § 1(Exh. A), 9-21-22)
The program shall be administered on a per-unit basis. For the purpose of this section of the program, "per-unit" means each unit built, except that any multi-family dwelling or similarly clustered structure may count as one unit, as determined by the Community Development Director or their designee(s).
(Ord. No. 2022-14, § 1(Exh. A), 9-21-22)
The program shall be comprised of the following sub-programs:
(1)
New residential construction;
(2)
Residential retrofitting/remodeling;
(3)
New commercial/non-city construction, not including any expansions or remodeling; and
(4)
City-owned civic or office construction, not including any expansions or remodeling.
(Ord. No. 2022-14, § 1(Exh. A), 9-21-22)
The program shall be administered using standards for certification developed by the Florida Green Building Coalition and the U.S. Green Building Council. These standards shall apply to each sub-program as follows:
(1)
GHDS. For any program participant seeking program certification for new residential construction the program participant must satisfy all of the requirements associated with the current Green Home Designation Standard of the FGBC, including but not limited to, any monetary or certification requirements. For the purpose of this section of the program, "current" means at the time a program participant submits a project application form with the building inspection department.
(2)
L.E.E.D. 2.0. For any program participant seeking program certification for new commercial/non-city construction or new municipal civic or office construction, the program participant must satisfy all of the requirements associated with the L.E.E.D. 2.0, including but not limited to any monetary or certification requirements.
(3)
Review. For the purpose of this section of the program, a program participant shall be bound by the standard designated for a particular sub-program unless the program participant both requests to be certified under a more current version of a designated standard and the request is approved by the city department responsible for administering the particular program.
(Ord. No. 2022-14, § 1(Exh. A), 9-21-22)
The Program shall consist of incentives designed to encourage the use of the Program. For any program participant seeking program certification for new residential construction, residential etrofitting/remodeling and new commercial non-city construction the City government shall provide the following incentives:
(1)
Reduced permitting fee, which shall equal 50 percent of the fee required for a non-program participant, subject to availability of funds;
(2)
Marketing for all sub-programs. For any program participant seeking program certification for new residential construction, residential retrofitting/remodeling or new commercial/non-city construction the City shall provide the following marketing incentives, including but not limited to:
a)
The erection of building site signs designating a project under the Program;
b)
The inclusion of program participants on a City webpage dedicated to the Program;
c)
The creation of promotional packages, such as a program logo for a program participant's advertisements or brochures;
d)
Press releases when the program participant receives certification.
(3)
Green Building Award. For the purpose of publicly recognizing outstanding commitment to "green building" the Program shall provide for an award called the "Green Building Award" to be awarded annually by the City Council.
(Ord. No. 2022-14, § 1(Exh. A), 9-21-22)
The program shall be subject to certification by a qualified third party who has been trained and certified as a green building rater. For the purpose of this section of the program, "third party" means any person or entity authorized by the FGBC or the USGBC to verify that a program participant has satisfied any or all of the requirements associated with the standard designated for a particular project.
(Ord. No. 2022-14, § 1(Exh. A), 9-21-22)
(1)
Staff review. The City's Community Development Department shall initiate a review of the Program as necessary to determine the need for change in the program to increase its effectiveness.
(2)
Frequency. The program shall be subject to review one year after the effective date of this ordinance and thereafter at a frequency of no more than once per year.
(3)
Purpose. The purpose of reviewing the Program includes but is not limited to updating program incentives, recommending program or market changes, reviewing suggestions made by program participants, and annually awarding the Green Building Award.
(Ord. No. 2022-14, § 1(Exh. A), 9-21-22)