2 DEFINITIONS AND RULES OF MEASUREMENT
(Ord. 19-10-26)
The following abbreviations may be used within this Chapter:
(Ord. 19-10-26)
ABUT: To share a common wall or lot line without being separated by a street or alley.
ACCESSIBILITY RAMP: A ramp or similar structure that provides wheelchair or similar access to a structure.
ACCESSORY BUILDING: A detached, roofed-over structure that is incidental, customary and subordinate to the use of the principal building.
ACCESSORY STRUCTURE: A detached structure, other than an accessory building, located on the same lot as the principal building that is incidental to the use of the principal building.
ACCESSORY USE: A use of land or a structure, or portion thereof, customarily incidental and subordinate to the principal use of the land or structure.
ADDITION: Construction that increases the size of a structure in terms of building footprint, height, or floor area.
ADJACENT: To lie near or close to; in the neighborhood or vicinity of.
ADJOIN: Touching or contiguous, as distinguished from adjacent.
A-FRAME SIGN: A temporary sign ordinarily in the shape of the letter “A” or some variation thereof, which is displayed on the ground, not permanently attached to the ground, and usually two-sided, generally connected at the top and separated at the bottom.
A-FRAME SIGN
ALLEY: A public right-of-way that normally affords a secondary means of access to abutting property.
AMATEUR (HAM) RADIO EQUIPMENT: An amateur (HAM) radio station licensed by the Federal Communications Commission (FCC), including equipment such as, but not limited to, a tower or building-mounted structure supporting a radiating antenna platform and other equipment.
AMUSEMENT FACILITY - INDOOR: A facility for spectator and participatory uses conducted within an enclosed building, such as movie theaters, gymnasiums (excluding those within public parks), sports arenas, bowling alleys, tumbling centers, skating centers, roller rinks, and pool halls. An indoor amusement facility may include ancillary uses such as, but not limited to, concession stands, restaurants, and retail sales.
AMUSEMENT FACILITY - OUTDOOR: A facility for spectator and participatory uses conducted outdoors or within partially enclosed structures, such as outdoor stadiums, fairgrounds, batting cages, miniature golf courses, and amusement parks. An outdoor amusement facility may include ancillary uses such as, but not limited to, concession stands, restaurants, and retail sales.
ANCILLARY: In regard to principal uses, additional uses part of the larger principal use that provide support and/or are typically integral to a principal use.
ANIMAL CARE FACILITY: A business which provides care for domestic animals, including veterinary offices for the treatment of animals, where animals may be boarded during their convalescence, pet grooming facilities, and pet boarding facilities, where animals are boarded during the day or for overnight stays.
ANIMAL KENNEL, COMMERCIAL: An establishment where dogs over six (6) months of age are boarded, bred, raised, and trained for commercial gain. A commercial animal kennel does not include animal shelters or shelter and training facilities for canine units of public safety agencies.
ANIMAL SHELTER: An establishment that houses and provides care for homeless, lost, or abandoned dogs, cats, and/or other animals until such animals are reclaimed by their owner, placed in a new home, placed with another organization for adoption, and/or euthanized.
ANIMATED SIGN: A sign that uses moving or changing lights to depict action, movement, or the optical illusion of movement of part of the sign structure, sign, or pictorial segment, or including the movement of any illumination or the flashing or varying of light intensity to create a special effect or scene. Animated signs do not include electronic message signs.
APIARY: A structure for the keeping of honeybees.
ARCHITECTURAL FEATURE: A part or projection that contributes to the aesthetics of a structure, exclusive of signs, that is not necessary for the structural integrity of the structure or to make the structure habitable.
ART GALLERY: An establishment that sells, loans and/or displays paintings, sculpture, photographs, video art, or other works of art. Art gallery does not include a cultural facility, such as a library or museum, which may also display paintings, sculpture, photographs, video art, or other works.
ARTS STUDIO: An establishment where an art, type of art or activity is taught, studied, or practiced such as dance, martial arts, photography, music, painting, gymnastics, pilates, or yoga. An arts studio also includes private exercise studios for private sessions with trainers and/or private classes.
ATTENTION GETTING DEVICE: Signs, devices, or ornamentations designed for the purpose of attracting attention or promotion, except as otherwise expressly permitted in this Article. Attention getting devices include banners, sails/feather signs, temporary on-premise pole signs, and the like. Federal, state, or local flags, or flags of fraternal, religious, and civic organizations, banners, and temporary holiday decorations are not considered attention getting devices.
ATTENTION GETTING DEVICE: EXAMPLES
SAIL/FEATHER SIGN
TEMPORARY POLE SIGN
WALL-MOUNTED BANNER
GROUND-MOUNTED BANNER
AVERAGE GROUND ELEVATION: The average level of the ground on a zoning lot existing prior to any reshaping of the natural contours at the four corners of a structure or proposed structure that are closest to the lot lines. When the existing natural ground level slopes down toward a lot line from any such corner, then the level of the ground for such corner shall be measured at the lowest point lying within six feet (6') of such corner which is outside the bounds of the structure or proposed structure.
AWNING: An awning is a roof-like cover designed for protection from the weather or as a decorative embellishment, which projects from a wall or roof of a structure over a window, walkway, or door, with no supports that extend to the ground.
AWNING SIGN: An awning sign is a sign printed or displayed upon an awning.
AWNING SIGN
BALCONY: A roofed or unroofed platform that projects from the exterior wall of a structure above the ground floor, which is exposed to the open air, has direct access to the interior of the building, and is not supported by posts or columns extending to the ground.
BALLOON SIGN: A sign or advertising device designed to be airborne or inflated and tethered to the ground or other structure. This includes any air-inflated signs and any signs that inflate and move via air inflation.
BANNER: A sign with copy on non-rigid material, such as cloth, plastic, fabric or paper mounted with or without rigid frames on a building or the ground that is not supported by a framework.
BAR: An establishment for the sale of alcoholic beverages for consumption on the premises. Snack foods or other prepared food may be available for consumption on the premises as an ancillary use.
BASEMENT: Habitable space in a building that is predominantly underground.
BAY WINDOW: A cantilevered window that projects outward from the structure, which does rest upon the building's foundation. A bay window shall not count toward building coverage or impervious surface coverage.
BED AND BREAKFAST: A single-family detached dwelling where a resident/owner, who lives on the premises, provides lodging for a daily fee in guest rooms with no in-room cooking facilities and prepares meals for guests.
BILLBOARD: See off-premise commercial sign – permanent.
BLADE (PROJECTING) SIGN: A sign that is attached to a rigid structure that extends more than eighteen inches (18”) beyond the surface of the structure to which it is attached. A marquee sign is not considered a blade sign.
BLADE (PROJECTING SIGN)
BLOCK: Defined in Section 20.2.4.
BLOCKFACE: Defined in Section 20.2.4.
BLUE ROOF: A roof designed to store water and discharge rainfall.
BODY MODIFICATION ESTABLISHMENT: An establishment that offers tattooing services, body piercing, and/or non-medical body modification. Body modification establishment does not include an establishment that offers only ear piercing as an ancillary service.
BOOK EXCHANGE BOX: An outdoor accessory structure maintained by a property owner on private property where books and recorded performing arts and media are kept for public and/or exchanges with no fees or sales and are publicly accessible.
BREW PUB: A restaurant-based establishment where beer is manufactured and stored on the licensed premises and sold at retail from storage tanks to non-licensees, and sold in packages to importing distributors, distributors, and non-licensees in accordance with the brewpub license. The brewing capacity is limited to less than six thousand (6,000) barrels per year.
BROADCASTING FACILITY - TV/RADIO: A facility engaged in broadcasting and information relay services for radio and television signals, including studio facilities. A broadcasting facility may or may not include antennas to broadcast the signal.
BUFFER YARD: Land area with landscape plantings and other components used to separate one use from another and to shield or block noise, lights, or other nuisances.
BUILD-TO LINE (BTL): Defined in Section 20.2.4.
BUILD-TO PERCENTAGE: Defined in Section 20.2.4.
BUILD-TO ZONE (BTZ): Defined in Section 20.2.4.
BUILDABLE AREA: The portion of a lot, excluding required setbacks, where a structure or building improvements may be erected.
BUILDABLE LOT: A zoning lot which meets the minimum lot size requirements for erection of a structure in the zoning district in which the zoning lot is located.
BUILDING: A structure enclosed by four (4) walls and a roof used or intended for supporting or sheltering any use or occupancy.
BUILDING COVERAGE: Defined in Section 20.2.4.
BUILDING ENVELOPE: The three-dimensional space within which a structure is permitted to be built on a lot and which is defined by regulations governing building setbacks, maximum height, and bulk, by other regulations, and/or by any combination thereof.
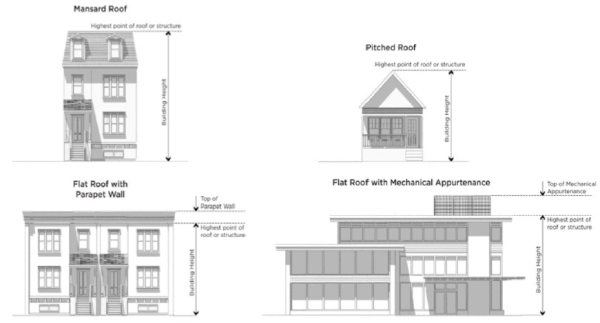
BUILDING HEIGHT: Defined in Section 20.2.4.
BUILDING LINE: A line measured at the building wall of a structure between parallel lot lines. For the purposes of establishing a building line, the building wall does not include permitted encroachments of architectural features, such as bay windows, eaves, and steps and stoops.
BUILDING PAD: The actual foundation area of a building and a ten foot (10’) clear area around the foundation necessary for construction and grade transitions.
BUILDING, TEMPORARY: Any building not designed to be permanently located at the place where it is or where it is intended to be temporarily placed or affixed.
BULK: The term used to indicate the size and volume of buildings or structures, the relation of same with respect to one another, and includes the following:
BUSINESS: An occupation, employment or enterprise which occupies time, attention, labor and materials; or wherein merchandise is exhibited or sold or where services are offered.
CALIPER: Defined in Section 20.2.4.
CAMPGROUND: An area to be used for transient occupancy by camping in tents, camp trailers, travel trailers, motor homes, or similar movable or temporary sleeping quarters.
CANOPY: A canopy is a roof-like cover designed for protection from the weather or as a decorative embellishment affixed to a building, or which is freestanding, and with supports that extend to the ground. A canopy may be one of two types:
CANOPY SIGN: A canopy sign is a sign printed, mounted, or installed upon a canopy.
CAR WASH: An establishment for the washing and cleaning of vehicles or other light duty equipment, whether automatic, by hand, or self-service. The car wash facility may be within an enclosed structure, an open bay structure, or similar configurations.
CARPORT: An open-sided roofed vehicle shelter, usually formed by extension of the roof from the side of a building, but may be freestanding.
CEMETERY: Land and structures reserved for the interring of human remains or the interring of animal remains. Cemeteries may include structures for performing religious ceremonies related to the entombment of the deceased, mortuaries, including the sales of items related to the internment of remains, and related accessory structures, such as sheds for the storage of maintenance equipment.
CHANGEABLE COPY: Letters, numerals, or other graphics that are not permanently affixed to a structure and/or set for permanent display, and are intended to be alterable through manual means.
CHANGEABLE MESSAGE BOARD SIGN: A sign designed where a portion of the sign area allows for a message to be changed manually. A changeable message board sign does not include electronic message signs or portable reader-board sign.
CHANGEABLE MESSAGE BOARD SIGN
CHICKEN COOP: A structure where hens are kept.
CHIMNEY: A vertical shaft of reinforced concrete, masonry or other approved material enclosing one or more flues, for the purpose of removing products of combustion from solid, liquid, or gaseous fuel.
CISTERN: An enclosed structure that is entirely below grade used for storing rain water for use at a later time.
CLEAR-CUTTING: The act of cutting and removing most or all trees from a stand of timber.
CLUSTER DESIGN: A subdivision design that allows for smaller lot sizes but remains lot neutral as compared to a tradition subdivision layout. Cluster design is intended to promote environmentally sensitive development, to preserve the natural and scenic qualities of open space, and to achieve a balance between aesthetically pleasing, well-designed neighborhoods, meaningful open space conservation, and natural resource protection.
COMMERCIAL VEHICLE: Commercial vehicle means any self-propelled or towed motor vehicle used on a highway in interstate commerce to transport passengers or property when the vehicle meets one or more of the following:
COMMUNITY CENTER: Community Center:
COMMUNITY GARDEN: The cultivation of fruits, flowers, vegetables, or ornamental plants by more than one person or family. Community gardens do not include the raising of livestock or the use of heavy machinery.
CONDITIONAL USE: Conditional uses are those whose effects on surrounding property cannot be foreseen until the use is proposed. These particular types of uses may give rise to unique problems with respect to their impact upon neighboring property or public facilities if established in some locations within a zoning district.
CONSERVATION AREA: Designated open space that preserves and protects natural features, wildlife, and critical environmental features. A conservation area may include opportunities for passive recreation, such as hiking trails and lookout structures, and environmental education.
CONSERVATION DESIGN: A subdivision design that evaluates land features and if applicable requires a percentage of conserved open space while allowing for a slight increase in the number of allowable lots. Conservation design is intended to promote environmentally sensitive development, to preserve the natural and scenic qualities of open space, and to achieve a balance between aesthetically pleasing, well-designed neighborhoods, meaningful open space conservation, and natural resource protection.
CONTIGUOUS: See abut.
CONTRACTOR OFFICE – WITH EQUIPMENT STORAGE: Offices for businesses in the conduct of any building trade or building craft, together with land and/or structures used for the storage of equipment, vehicles, machinery, or building materials related to and used by the building trade or craft. A contractor office with no equipment storage is considered an office.
CROSS-ACCESS: A vehicular and/or pedestrian connection between abutting properties that connects the two (2) sites and allows vehicles and/or pedestrians to travel between sites without the having to exist to the street.
CULTURAL FACILITY: A facility open to the public that provides access to cultural exhibits and activities including, but not limited to, museums, cultural centers, non-commercial galleries, historical societies, and libraries. A cultural facility may include uses such as, but not limited to, retail sales of related items, and restaurants as ancillary uses.
DAY: A calendar day.
DAY CARE CENTER: A commercial facility where, for a portion of a twenty-four (24) hour day, care and supervision is provided for:
DAY CARE HOME: A residential dwelling where care and supervision is provided by a permanent occupant of the dwelling for:
DECK: A roofless outdoor space built as an aboveground platform projecting from the wall of a structure and connected by structural supports at grade or by the structure.
DEVELOPMENT: The construction, reconstruction, conversion, structural alteration, relocation, or enlargement of any structure, any mining, excavation, landfill or land disturbance, or any change in use, or alteration or extension of the use, of land.
DRAINAGEWAY: A route or course along which water moves or may move to drain an area.
DRIVE-THROUGH FACILITY: That portion of a business where business is transacted directly with customers via a service window that allows customers to remain in their vehicle. A drive-through facility is approved separately as a principal use in conjunction with other principal uses such as restaurants and financial institutions.
DRIVEWAY: A pathway for motor vehicles from a street to a lot used only for service purposes or for access to the lot.
DWELLING: A building, or portion thereof, designed or used exclusively for human habitation, including single-family dwellings - detached and attached, two-family dwellings, townhouse dwellings, and multi-family dwellings, but excluding manufactured homes and hotels. A dwelling contains: (1) a kitchen; (2) one or more bedrooms; and (3) lavatory.
DWELLING, MANUFACTURED HOME: A manufactured home dwelling is a prefabricated structure that is regulated by the U.S. Department of Housing and Urban Development (HUD), via the Federal National Manufactured Housing Construction and Safety Standards Act of 1984, rather than local building codes. A manufactured home is built in a factory on an attached chassis before being transported to a site. Manufactured homes include those transportable factory built housing units built prior to the Federal National Manufactured Housing and Safety Standards Act (HUD Code), also known as mobile homes. Modular homes are not considered manufactured homes, and refer to a method of construction.
DWELLING, MULTI-FAMILY: A structure containing three (3) or more attached dwelling units used for residential occupancy on a single lot. A multi-family dwelling does not include a townhouse dwelling.
DWELLING, SINGLE-FAMILY - DETACHED: A structure containing only one dwelling unit on a single lot.
DWELLING, TOWNHOUSE: A structure that that contains two (2) or more dwelling units attached by a party wall on separate lots or separate tax parcels.
DWELLING, TWO-FAMILY: A structure containing two (2) dwelling units on a single lot.
EASEMENT: A grant by a property owner for the use of a strip or area of land by the City, a public utility, a corporation, or a person for specified purposes.
EAVE: The projecting lower edges of a roof overhanging the wall of a structure.
EFFECTIVE DATE: The date the Zoning Ordinance goes into effect. The adoption date and the effective date may be the same, or the effective date, as stated in the adopting ordinance, may be established at a later date after the adoption date.
ENCROACHMENT: The extension or placement of any structure, or a component of such, into a required setback or right-of-way.
ELECTRIC VEHICLE (EV) CHARGING STATION: An accessory structure that provides electric energy for the recharging of electric vehicles.
ELECTRONIC MESSAGE SIGN: A sign designed where a portion of the sign area uses changing light emitting diodes (LEDs), fiber optics, light bulbs or other illumination devices within the electronic display panel(s) to form a message or messages in text and/or image from where the sequence of messages and the rate of change is electronically programmed and can be modified by electronic processes. Time/temperature signs are not considered electronic message signs. Flashing signs, animated signs, and video display signs are not considered electronic message signs.
ELECTRONIC MESSAGE SIGN
ENERGY SYSTEM - SOLAR (PRINCIPAL): An energy system operated by a public, private, or cooperative company for the generation, transmission, distribution, storage, or processing of solar energy.
ENERGY SYSTEM - WIND (PRINCIPAL): An energy system operated by a public, private, or cooperative company for the generation, transmission, distribution, or processing of wind energy.
ERECT: To build, construct, attach, hang, place, suspend, or affix.
EXTERIOR LIGHTING: The illumination of an outside area or object by any man-made device that produces light by any means.
EXTERIOR STAIRWELL: One or more flights of stairs, and the necessary landings and platforms connecting them, to form a continuous passage from the entryway of a floor or level to another in a structure located on the exterior of a principal building.
EXTERNAL ILLUMINATION: Illumination by an artificial source of light not internal to the sign face.
FAMILY: An individual, or two (2) or more persons related by blood, marriage, or civil union, and all adopted or foster children, or a group of not more than four (4) persons, (excluding servants), not so related, living together as a single housekeeping unit in a dwelling unit.
FARMER'S MARKET: Temporary use of structures and/or land for the sale of a variety of fresh fruits, flowers, vegetables, or ornamental plants, and other locally produced farm and food products, including value-added products, directly to consumers from two (2) or more farmers or from vendors that have taken such items on consignment for retail sale. Not on use table.
FENCE: A vertical manmade structure, which is a barrier and used as a boundary or means of protection, confinement or decoration.
FINANCIAL INSTITUTION: An institution licensed as a receiver of deposits, a savings and loan, credit union, or mortgage office.
FLAG: Flags of any nation, state, municipality, or political subdivision, flags officially designated as a national, state, or local symbol, or flags of fraternal, religious, and civic organizations. Pennants and sails are not considered flags
FLASHING SIGN: A sign with an intermittent or sequential flashing light source used primarily to attract attention. Flashing signs do not include electronic message signs.
FLOODLIGHT: A powerful light, typically in a grouping of several lights, used to illuminate the exterior of a building or sign.
FLOOR AREA: Defined in Section 20.2.4.
FLOOR AREA RATIO: Defined in Section 20.2.4.
FOOT-CANDLE: A unit of measure of illuminance equal to one lumen of light spread over an area of one square foot.
FRONTAGE: The frontage of a zoning lot is the length of property of such zoning lot on the front lot line and is measured between side zoning lot lines.
FULL CUTOFF LUMINAIRE: A luminaire having zero intensity at or above horizontal ninety percent (90°) and limited to a value not exceeding ten percent (10%) of lamp lumens at or above eighty degrees (80°). Such luminaire is determined by a photometric test and certified by the manufacturer.
FUNERAL HOME: An establishment where the dead are prepared for burial display and for rituals before burial or cremation, including chapels for the display of the deceased and the conducting of rituals before burial. A funeral home may or may not perform cremation and have crematoriums.
GARAGE: A structure, either attached or detached, used for the parking and storage of vehicles as an accessory use to a residence. For the purposes of this definition, garage does not include a commercial parking structure.
GARAGE SALE: Means and includes "garage sale", "basement sale", "backyard sale", "estate sale," or any similar type of sale of three (3) or more household items and "arts and crafts sale" of handcrafted items which are held on residential premises and to which the general public is invited.
GAS STATION: An establishment where fuel for vehicles is stored and dispersed from fixed equipment into the fuel tanks of motor vehicles. A gas station may also include ancillary retail uses, an ancillary car wash bay, ancillary minor vehicle repair facilities, and solar and/or electric charging stations.
GAZEBO: A freestanding outdoor structure designed for recreational use and not for habitation.
GLARE: Light emitting from a luminaire with an intensity great enough to reduce a viewers' ability to see, cause discomfort, and, in extreme cases, cause momentary blindness.
GOLF COURSE/DRIVING RANGE: A tract of land design with at least nine (9) holes for playing a game of golf and improved with tees, greens, fairways, and hazards. A golf course may include a clubhouse, restrooms and shelters, and country club facilities. A driving range may be designed as a standalone facility or included as part of a larger golf course.
GOVERNMENT FACILITY: Facilities owned, operated, or occupied by a governmental agency to provide a governmental service to the public. Government offices do not include public safety or public works facilities.
GRADE: The highest level of the finished surface of the ground adjacent to the exterior walls of the building or structure.
GREEN ROOF: A building roof partially or completely covered with vegetation and a growing medium, planted over a waterproofing membrane. It may also include additional layers such as a root barrier and drainage and irrigation systems.
GREENHOUSE (ACCESSORY): A structure constructed chiefly of glass, glasslike or translucent material, cloth, or lath, which is devoted to the protection or cultivation of flowers or other tender plants.
GROSS AREA: The total land and water area included in a parcel excluding property solely located in public rights of way or private easements of access or egress.
GROSS FLOOR AREA (GFA): Defined in Section 20.2.4.
GROUND SIGN: A sign that is placed on or supported by the ground, independent of the principal structure on the lot, designed with a monument base that is an integral part of the sign structure. A ground sign must be designed so that the width of the top of the sign face is a minimum of 70% and a maximum of 130% of the width of the base, unless designed with decorative posts as permitted by the ground sign regulations of this Article. There are three (3) types of ground signs regulated by this Article:
GROUND SIGN
GROUP HOME - LARGE: A dwelling unit occupied as a common household for specialized residential care for persons with disabilities in need of personal services or assistance essential for activities of daily living or in need of supervision and occupied by a number of residents that exceed the number of persons allowed by the definition of “family”.
GROUP HOME - SMALL: A dwelling unit occupied as a common household for specialized residential care for persons with disabilities in need of personal services or assistance essential for activities of daily living or in need of supervision and occupied by a number of residents that is equal to or less than the number of persons allowed by the definition of “family”.
HEALTHCARE FACILITY: Facilities for primary health services and medical or surgical care to people, primarily in-patient, and including, as an integral part of the institution, related facilities such as laboratories, outpatient facilities, dormitories, or educational facilities, and ancillary uses such as, but not limited to, cafeterias, restaurants, retail sales, and similar uses.
HEAVY RETAIL, RENTAL, AND SERVICE: Retail, rental, and/or service establishments of a heavier and larger-scale commercial character typically requiring permanent outdoor service or storage areas and/or partially enclosed structures. Examples of heavy retail, rental, and service establishments include large-scale home improvement centers with outdoor storage, display, and rental components, lumberyards, truck rental establishments, and sales, rental, and repair of heavy equipment. Wholesale establishments that sell to the general public, including those establishments where membership is required, are considered heavy retail, rental, and service establishments.
HEDGE: A row of closely planted shrubs, bushes, or any kind of plant forming a boundary.
HOME-BASED BUSINESS/HOME OCCUPATION: Any commercial activity carried out for economic gain by a resident, conducted as an accessory use in the resident's dwelling unit.
HOTEL: A facility that provides sleeping accommodations for a fee and customary lodging services. Related ancillary uses include, but are not be limited to, meeting facilities, restaurants, bars, and recreational facilities for the use of guests.
IMPERVIOUS SURFACE COVERAGE RATIO: Defined in Section 20.2.4.
INDUSTRIAL DESIGN: An establishment where the design, marketing, brand development and sales of various products are researched and developed. An industrial design establishment may create prototypes of products, but may not manufacture products for direct sale and distribution from the premises.
INDUSTRIAL – GENERAL: The manufacturing of products from processed or unprocessed raw materials, including processing, fabrication, assembly, treatment, and packaging of such products, and incidental storage, sales, and distribution of such products. This manufacturing may produce noise, vibrations, illumination, or particulate that is perceptible to adjacent land users. These industrial uses typically have ancillary outdoor storage areas.
INFRASTRUCTURE: Facilities and services needed to sustain residential, commercial, industrial, institutional, and other activities, including, but not limited to, water lines, sewer lines, and rights-of-way.
INSTALLED HEIGHT: The height above grade of the lowest light emitting point of an installed luminaire.
INTENSITY OF USE: Square feet of gross floor area, number of dwelling units, number of employees, or other factor used as a basis for requiring off-street parking or loading facilities.
LANDSCAPE BUSINESS: A business that provides services designing, installing, planting or maintaining yards, gardens, or other outside grounds, and where equipment, supplies, and plant material may be grown or stored on-site. A landscape business may include plant material available for retail sales.
LANDSCAPING: Living plants including grass, shrubs and trees.
LIGHT POLE BANNER: Banners mounted on and with arms installed perpendicular to light poles.
LIGHT POLE BANNER
LIVE ENTERTAINMENT: A venue that stages live performances, performed live by one or more persons including, but not limited to, musical acts including disc jockeys (DJs), theatrical plays, performance art, stand-up comedy, and magic, and may be included as part of the operation of a bar, restaurant, amusement facility, or similar use.
LOADING BERTH: A space within a loading facility exclusive of driveways, aisles, maneuvering areas, ramps, columns, landscape, and structures for the temporary parking of a commercial delivery vehicle while loading or unloading goods or materials.
LOT: Defined in Section 20.2.4.
LOT AREA: Defined in Section 20.2.4.
LOT, CORNER: Defined in Section 20.2.4.
LOT DEPTH: Defined in Section 20.2.4.
LOT, INTERIOR: Defined in Section 20.2.4.
LOT LINE: Defined in Section 20.2.4.
LOT LINE, CORNER: Defined in Section 20.2.4.
LOT LINE, FRONT: Defined in Section 20.2.4.
LOT LINE, INTERIOR: Defined in Section 20.2.4.
LOT LINE, REAR: Defined in Section 20.2.4.
LOT LINE, STREET: Defined in Section 20.2.4.
LOT OF RECORD: A parcel of land that was lawfully recorded per the requirements of this Chapter.
LOT SIZE: See Lot Area.
LOT, THROUGH: Defined in Section 20.2.4.
LOT WIDTH: Defined in Section 20.2.4.
LUMEN: A unit of measure of luminous flux.
LUMINAIRE, LIGHT LUMINAIRE: The complete lighting assembly (including the lamp(s), housing, ballasts, photocells, globes, reflectors or refractors, lenses, sensors and shield(s) and excluding the support assembly or pole, mounting bracket and base) consisting of one or more lamps, together with the attachment parts designed to distribute light, position and connect the lamp to the power supply.
MARQUEE: A permanent roof-like structure constructed of permanent building materials that extends from the wall of a structure with no supports extending to the ground providing protection from the elements.
MARQUEE SIGN: A sign that is a part of or attached to a marquee. Where designed as a changeable message, sign, the changeable message portion may be manually changed or electronically changed when permitted by this Article.
MARQUEE SIGN
MECHANICAL EQUIPMENT: Equipment installed as part of the principal building or site operation including, but not limited to, heating, ventilation, and air conditioning (HVAC) equipment, elevator bulkheads, and electrical generators.
MEDICAL/DENTAL OFFICE: A facility operated by one or more physicians, dentists, chiropractors, psychiatrists, physiotherapists, or other licensed practitioners of the healing arts for the examination and treatment of persons solely on an outpatient basis. Medical/dental offices also include alternative medicine clinics, such as acupuncture and holistic therapies, and physical therapy offices for physical rehabilitation.
MEDICAL CANNABIS DISPENSING ORGANIZATION: A facility as defined in the compassionate use of medical cannabis pilot program act, 410 Illinois Compiled Statutes 130/1 et seq. (the "act"), subject to said medical cannabis dispensing organization being otherwise in full compliance with the act, including, but not limited to, the location restrictions as set forth in the act.
MENUBOARD: A sign constructed as part of drive-through facilities.
MENUBOARD
MICRO-BREWERY: A facility for the production and packaging of malt beverages of alcoholic content for wholesale distribution, with a capacity of less than 15,000 barrels per year and may include a tasting room. A tasting room allows customers to taste samples of products manufactured on site and purchase related sales items; ancillary live entertainment for patrons of the tasting room is also permitted. Sales of alcohols manufactured outside of the facility are prohibited. (See "general industrial" for capacity in excess of 15,000 barrels per year.)
MICRO-DISTILLERY: A facility for the production and packaging of alcoholic beverages in quantities not to exceed 25,000 gallons per year and may include a tasting room. A tasting room allows customers to taste samples of products manufactured on site and purchase related sales items; ancillary live entertainment for patrons of the tasting room is also permitted. Sales of alcohols manufactured outside of the facility are prohibited. (See "general industrial" for capacity in excess of 25,000 gallons per year.)
MICRO-WINERY: A facility for the production and packaging of any alcoholic beverages obtained by the fermentation of the natural contents of fruits or vegetables, containing sugar, including such beverages when fortified by the addition of alcohol or spirits, in quantities not to exceed 25,000 gallons per year and may include a tasting room. A tasting room allows customers to taste samples of products manufactured on site and purchase related sales items; ancillary live entertainment for patrons of the tasting room is also permitted. (See "general industrial" for capacity in excess of 25,000 gallons per year.)
MOTEL: An establishment that is designated for transient guests and which provides individual entrances to dwelling units from outside the building.
MOVING SIGN: A sign where the entire sign structure or a portion of which rotates, moves, elevates, or in any way alters position or geometry. A tri-vision sign where triangular prisms rotate inside a frame to show a new message and/or information are considered moving signs. Moving signs do not include clocks or barber poles.
MULTI-TENANT RETAIL CENTER: A group of three (3) or more commercial establishments that is planned, owned, and/or managed as a single property. The two (2) main configurations of multi-tenant retail centers are large shopping centers/malls and strip centers.
NEON: A source of light for externally lit street signs supplied by a neon tube that is bent to form letters, symbols, or other shapes.
NET AREA: The gross area of a parcel less land and water area required or proposed to be publicly dedicated. Land and water areas not so publicly dedicated or devoted shall be included in the calculation of net area.
NITS: A luminance unit equal to one candle per square meter measured perpendicular to the rays from the source
NONCOMMERCIAL: A noncommercial message does not direct attention to a business, product, service, commercial entertainment, or other commercial activity offered on or off the premises.
NONCONFORMING LOT: A lot of record that at one time conformed to the lot dimension requirements (lot area, lot width, lot depth) of the zoning district in which it is located but because of subsequent amendments to this Chapter no longer conforms to the applicable lot dimensions.
NONCONFORMING SIGN: A sign that once conformed to zoning district regulations but because of subsequent amendments to this Chapter no longer conforms to applicable sign regulations.
NONCONFORMING SITE ELEMENT: A site development element, such as landscape, fences or walls, lighting, and parking, that at one time conformed to the requirements of this Chapter but because of subsequent amendments, has been made nonconforming.
NONCONFORMING STRUCTURE: A principal or accessory structure that once conformed to zoning district regulations but because of subsequent amendments to this Chapter no longer conforms to applicable dimensional standards.
NONCONFORMING USE: The use of a structure or land that at one time was an allowed use within a zoning district but because of subsequent amendments to this Chapter is no longer allowed.
NON-RESIDENTIAL USE: A structure or land arranged, designed, used, or intended to be used for non-residential uses, which includes, but is not limited to, retail, office, entertainment, recreation, public, institutional, and other non-residential uses. Structures with dwellings above ground floor non-residential uses are considered mixed-use development and considered a non-residential use for the purposes of this Chapter.
NURSERY/GREENHOUSE – RETAIL: An establishment where flowers, shrubbery, vegetables, trees, and other horticultural and floricultural products are propagated and sold, and may include gardening and landscape supplies and products, such as hardware, garden tools and utensils, paving stones and bricks, and other related items for sale.
OFFICE: An establishment that engages in the processing, manipulation, or application of business information or professional expertise. Such an office may or may not offer services to the public. An office is not materially involved in fabricating, assembling, or warehousing of physical products for the retail or wholesale market, nor engaged in the repair of products or retail services. An office does not include bank or financial institution, government facility, or industrial design.
OFF-PREMISE COMMERCIAL SIGN – PERMANENT: A permanent sign directing attention to a specific business, product, service, entertainment event, activity, or other commercial activity that is not sold, produced, manufactured, furnished, or conducted at the property upon which the sign is located. Also called a billboard.
OFF-PREMISE COMMERCIAL SIGN – TEMPORARY: A temporary sign directing attention to a specific business, product, service, entertainment event, activity, or other commercial activity that is not sold, produced, manufactured, furnished, or conducted at the property upon which the sign is located. This includes any ground-mounted, building-mounted, or sign painted, pasted, or otherwise affixed to any tree, rock, fence, utility pole, hydrant, bridge, sidewalk, parkway, curb or street, bench, or trash receptacle that directs attention off-premises.
OFF-STREET PARKING: The storage space for an automobile on premises other than streets or rights-of-way.
OPEN SPACE: That portion of land, either landscaped or left unimproved, which is used to meet active or passive recreation or spatial needs, and/or to protect water, air, or plant resources.
ORGANIZED SPORTING EVENT: A prearranged sports or recreational event involving at least one group or team with a roster and schedule.
OUTDOOR DINING: A seating area that is located outdoors and contiguous to a restaurant or bar/brew pub, typically in addition to an indoor seating area. Outdoor dining is approved separately as a principal use. Outdoor dining areas may be roofed or covered with an awning.
OUTDOOR STORAGE: The storage of material outdoors as a principal use of land.
OUTLOT: An area of land set aside within a retail center for a separate principal building that shares a circulation system and may share common parking with the larger retail center development but is separated from the principal building or buildings, typically located along the property line.
OWNER: Any person, including the owner of the title or a mortgage whose interest is shown of record in the mortgage and conveyance records; a person shown as owner in the records of the tax assessor of the county in which the property is situated; or the agent of any such person and those in possession of a dwelling, dwelling unit, or premises.
PARAPET: The extension of a false front or wall above a roof-line.
PARK: A facility that serves the recreational needs of residents and visitors. Park includes, but is not limited to, playgrounds, ballfields, football fields, soccer fields, basketball courts, tennis courts, dog parks, skateboard parks, passive recreation areas, and gymnasiums. Public parks may also include non-commercial indoor or outdoor amusement facilities, including zoos and amphitheaters, ancillary uses such as, but not limited to, restaurant and retail establishments, and temporary outdoor uses such as festivals and performances.
PARKING LOT: An open, hard-surfaced area, other than a street or public way, used for the storage of operable vehicles, whether for compensation or at no charge. This includes park-and-ride lots, where commuters and others park their vehicles and transfer to a bus, rail system (rapid transit, light rail, or commuter rail), or carpool, and the vehicle is left in the lot during the day and retrieved when the owner returns.
PARKING STRUCTURE: A structure of one or more levels or floors used for the parking or storage of operable vehicles, whether for compensation or at no charge.
PARTY WALL: A wall starting from the foundation and extending continuously through all stories to or above the roof that separates one building from another, but is in joint use by each building.
PATIO: A hard surface designed and intended for recreational use by people and not used as a parking space.
PENNANT: Any lightweight plastic, fabric or other material, whether or not containing a message of any kind, suspended from a rope, wire, or string, usually in series, designed to move in the wind.
PERFORMANCE STANDARDS: A set of criteria or limits relating to elements that a particular use or process must either meet or may not exceed.
PERGOLA: A freestanding, open structure that forms a partially shaded pedestrian walkway, passageway, or sitting area, and is constructed of a semi-open roof and vertical posts that support cross-beams and a sturdy open lattice. It may also be used as an extension of a building entryway.
PERMEABLE PAVING: A system of materials and techniques for paving roads, driveways, parking lots, walkways and similar surfaces that is designed to reduce the peak flow of runoff of water falling on the surface in a typical rainfall event by at least thirty three percent (33%) by allowing water to permeate through the surface material into an aggregate subbase, and eventually infiltrate the soil lying directly below, as determined by the director of community development.
PERMITTED USE: A use that is allowed in a zoning district without special approvals that meets the standards of this Chapter.
PERSONAL SERVICE ESTABLISHMENT: An establishment that provides frequent or recurrent needed services of a personal nature. Typical uses include, but are not limited to, beauty shops, barbershops, tanning salons, electronics repair shops, nail salons, laundromats, health clubs, dry cleaners, and tailors.
PERVIOUS PAVING: A range of sustainable materials and techniques for permeable paving with a base and sub-base that allow the movement of stormwater through the surface. Gravel and loose rock are not considered pervious paving.
PLACES OF WORSHIP: A facility where persons regularly assemble for religious purposes and related social events, and may include group housing for persons under religious vows or orders. Places of worship may also include ancillary day care facilities and/or classrooms for weekly religious instruction.
PLAN COMMISSION: The plan commission of the Village of Clarendon Hills.
PLAT: A map, chart, and drawings that are appropriate for recording, and indicate the subdivision, consolidation, or resubdivision of land.
PLAYING FIELD: An open outdoor field or court used for, but not limited to, playing sports such as baseball, soccer, football, tennis, volleyball, and basketball.
PORCH: An architectural feature that projects from the exterior wall of a structure, has direct access to the street level of the building, and is covered by a roof or eaves.
PORCH – ENCLOSED: A porch enclosed by walls, screens, lattice or other material. A screened-in porch is an enclosed porch.
PORCH - OPEN: Open porches include porches that are covered by the house's roof structure, have open sides, and are integral to the design of the house. This definition shall not include uncovered decks.
PORCH – UNENCLOSED: A porch that is open on all sides that do not abut a principal building wall.
PORTABLE READER-BOARD SIGN: A sign whose principal supporting structure is intended, by design and construction, to rest upon the ground for support and may be easily moved or relocated for reuse. Portable reader-board signs include, but are not limited to, signs mounted upon a trailer, wheeled carrier, or other non-motorized mobile structure, with wheels or with wheels removed. Portable reader-board signs do not include a-frame signs.
PRINCIPAL BUILDING: A non-accessory building in which a principal use of the lot on which it is located is conducted.
PRINCIPAL USE: The main use of land or structures as distinguished from an accessory use.
PRIVATE CLUBS OR LODGE: A facility operated by an organization or association for a common purpose, such as, but not limited to, a meeting hall for a fraternal or social organization or a union hall, but not including clubs organized primarily for-profit or to render a service which is customarily carried on as a business.
PROPERTY LINE: For the purposes of this Chapter, a property line is a lot line. (See lot line definition.)
PUBLIC IMPROVEMENTS: All improvements for which the City may ultimately assume responsibility for maintenance or operation, or which may affect an improvement for which City responsibility is established. This includes, but is not necessarily limited to, storm drainage, sanitary sewerage and water supply facilities, streets, curbs, gutters, sidewalks, parkways, trees, street lights, street signs, and other accessory works and appurtenances.
PUBLIC INFORMATION/EVENT SIGN: Temporary signs that provide information on a public event or provide public information that contains no commercial advertising except for sponsor names and logos.
PUBLIC SAFETY FACILITY: A facility operated by and for the use of public safety agencies, such as the fire department and the police department, including the dispatch, storage, and maintenance of police and fire vehicles. Public safety facilities include shelter and training facilities for canine units of public safety agencies.
PUBLIC WORKS FACILITY: A facility operated by the municipal or parish public works departments to provide municipal and parish services, including dispatch, storage, and maintenance of municipal vehicles.
PYLON SIGN: A type of ground sign that is affixed, attached, or erected on one or more poles, uprights, or braces from the ground and not supported by a building or a base structure. Pylon signs are any ground signs that do not meet the design and construction standards of this Article for a ground sign. Pylon signs do not include permitted attention getting devices, such as temporary pole signs ground-mounted banners, or other freestanding signs specifically allowed by this Article.
PYLON SIGN
RAIN BARREL: An above ground enclosed structure used for collecting rain water for use at a later time.
RECEPTION/BANQUET FACILITY: A facility that provides hosting and rental services of a banquet hall or similar facilities for private events including, but not limited to, wedding receptions, holiday parties, and fundraisers, with food and beverages that are prepared and served on-site or by a caterer to invited guests during intermittent dates and hours of operation. Live entertainment may be provided as an ancillary use as part of an event. A reception/banquet facility is not operated as a restaurant with regular hours of operation.
RECYCLING CONTAINER: A container used to collect recyclables generated by the use on-site to be transported to a recycling center.
RECREATIONAL VEHICLE: Any vehicle or boat designed for temporary living quarters, recreation, or temporary human habitation and not used as a commercial vehicle including, but not limited to, the following: boat/watercraft, camper trailer, motorized trailer, off-road vehicle, racing car or cycle, travel trailer, and truck camper.
REFUSE DUMPSTER: A container used for collecting solid waste generated by the use on-site. Refuse dumpsters are picked up by a specially equipped truck for transporting the waste materials to the disposal site.
RESEARCH AND DEVELOPMENT: A facility where research and development is conducted in industries that include, but are not limited to, biotechnology, pharmaceuticals, medical instrumentation or supplies, communication, and information technology, electronics and instrumentation, and computer hardware and software. A research and development establishment may create prototypes of products, but may not manufacture products for direct sale and distribution from the premises.
RESIDENTIAL CARE FACILITY: A licensed care facility that provides 24-hour medical or non-medical care of persons in need of personal services, supervision, or assistance essential for sustaining the activities of daily living, or for the protection of the individual. A residential care facility includes nursing homes, assisted living, hospice care, and continuum of care facilities.
RESIDENTIAL SUBDIVISION: A residential neighborhood developed as an integrated whole and typically with a specific identity.
RESIDENTIAL USE: A structure arranged, designed, used, or intended to be used for residential occupancy by one or more families or households, which includes, but is not limited to, the following types: single-family – detached, two-family, townhouse, and multi-family dwellings. Structures with dwellings above ground floor non-residential uses are considered mixed-use development, which are considered a non-residential use for the purposes of this Chapter.
RESTAURANT: An establishment where food and drinks are prepared and sold to the public, typically for on-premises consumption by seated patrons.
RESTAURANT, CARRY-OUT: A food establishment not providing drive-in or curb service, where food is prepared for sale and consumption primarily off the premises, and which devotes less than fifty percent (50%) of the gross floor area of the establishment to seating accommodations for patrons.
RESTAURANT, FAST FOOD: A food service establishment, with or without drive-in, drive-through or curb service, where food is prepared and supplied quickly and easily after ordering and with minimal service in order to be consumed as a quick meal or to be taken out.
RESUBDIVISION: The division of an existing subdivision into additional lots
RETAIL GOODS ESTABLISHMENT: An establishment that provides physical goods, products, or merchandise directly to the consumer, where such goods are typically available for immediate purchase and removal from the premises by the purchaser.
RIGHT-OF-WAY: A strip of land dedicated for use as a public way. In addition to the roadway, it typically incorporates the curbs, parkways, sidewalks, and shoulders.
ROOF SIGN: A sign that is erected, constructed, or maintained on and/or extending above the roof structure or parapet of any building with the principal support attached to the roof structure.
ROOF SIGN
ROOFLINE: The top edge of a roof or building parapet, whichever is higher, excluding any cupolas, pylons, chimneys or minor projections.
SAFETY GLASS: Glass designed to prevent splintering when broken, such as toughened/tempered glass, laminated glass, and wire mesh glass.
SATELLITE DISH ANTENNA: A dish antenna designed for transmitting signals to a receiver or receiving station or for receiving television, radio, data, communication or other signals from other antennas, satellites or other services.
SCHOOL - COLLEGE OR UNIVERSITY: A facility for post-secondary higher learning that grants associate or bachelor degrees. The institution may also have research facilities and/or professional schools that grant master and doctoral degrees. School – College or University includes ancillary uses such as dormitories, cafeterias, restaurants, retail sales, indoor or outdoor recreational facilities, and similar uses.
SCHOOL - PRIMARY OR SECONDARY: A public, private, or parochial facility that offers instruction at the elementary, junior high, and/or high school levels.
SCHOOL - TRADE OR VOCATIONAL: A facility that offers instruction in industrial, clerical, computer, managerial, automotive, repair (electrical, plumbing, carpentry, etc.), or commercial skills, or a business conducted as a commercial enterprise, such as a school for general educational development or driving school. School – Trade or Vocational also applies to privately operated schools that do not offer a complete educational curriculum.
SEARCHLIGHT: An attention-getting device where an artificial light of high intensity is shined upward in a focused beam and can turn in any direction to attract attention to a location. Also known as sky-beams or sky spotlights.
SELF-STORAGE: A facility for the storage of personal property where individual renters control and access individual storage spaces. Ancillary retail sales of related items, such as moving supplies, and facility offices may also be included.
SETBACK: Defined in Section 20.2.4.
SETBACK, BELOW GRADE STRUCTURE: Defined in Section 20.2.4
SETBACK, CORNER SIDE: Defined in Section 20.2.4.
SETBACK, FRONT: Defined in Section 20.2.4.
SETBACK, INTERIOR SIDE: Defined in Section 20.2.4.
SETBACK, REAR: Defined in Section 20.2.4.
SHED: An accessory structure, often purchased pre-built or as a kit in pre-fabricated sections, that is not designed to be served by heat or plumbing and does not need to be placed on a permanent foundation. A shed is typically intended to store lawn, garden, or recreational equipment.
SIGN: A lettered, numbered, symbolic, pictorial, or illuminated visual display designed to identify, announce, direct, or inform that is visible from a public right of way.
SIGN COPY: The elements of a sign that communicate the message including, but not limited to, words, logos, designs, figures, or other symbols that relay the subject matter or message.
SIGNIFICANT NATURAL RESOURCES: Plant and animal species and the area capable of providing habitat for plant and animal species and capable of functioning to support environmental systems, including migratory patterns, and maintain the City's environmental balance: Such resources include, but are not limited to, woodlands, surface and groundwater, soils, drainage systems, wetlands, prairies, and grasslands.
SPECIALTY FOOD SERVICE: A business that specializes in the small quantity production and sale of specific food products, such as a coffee roaster, cheesemonger, candy maker, or meat market, and includes areas for ancillary retail sales and/or restaurants that sell and/or serve the products processed on-site. Specialty food service includes preparation, processing, canning, or packaging of food products where all processing is completely enclosed and there are no outside impacts.
STACKING SPACE: A space specifically designed and designated as a waiting area for vehicles patronizing a drive-through facility or service bay.
STOOP: An exterior floor typically, constructed of stone, concrete, and/or masonry, with a finished floor elevation higher than the adjacent ground level, often with steps leading up to it, and utilized primarily as an access platform to a structure. A stoop may be roofed and designed with railings, but cannot be enclosed.
STREET: A public or private right-of-way that affords a primary means of vehicular access to abutting property, but does not include alleys or driveways.
STREET LIGHTING: One or more luminaires or light installations designed to illuminate a public roadway or intersection.
STREET LINE: The right of way line of a street.
STRUCTURAL ALTERATION: Any change, other than incidental repairs, which would prolong the life of supporting members of a structure, such as the addition, removal, or alteration of bearing walls, columns, beams, girders or foundations.
STRUCTURE: A combination of materials assembled to form a construction for use, occupancy, or ornamentation, whether installed on, above, or below, the surface of land or water.
SUBDIVISION: The division of a lot into two (2) or more lots, the consolidation of two (2) or more lots, or a change in the boundary of one or more lots.
SUSPENDED SIGN: A sign suspended from the underside of the horizontal plane surface of an awning, canopy, cantilever, marquee, arcade, or gallery. Under-awning signs are distinct from blade signs, which are attached to the structure.
SUSPENDED SIGN
TEMPORARY CONTRACTOR'S OFFICE: A temporary structure utilized as a watchman's quarters, construction office, equipment shed, or sales center during the construction of a new development.
TEMPORARY MOBILE FOOD SALES: A mobile food establishment where food preparation and service is housed in a truck or trailer or a non-motorized mobile food cart.
TEMPORARY OUTDOOR ENTERTAINMENT: A temporary live entertainment event, such as the performance of live music, revue, or play within an outdoor space. Temporary outdoor entertainment event includes fireworks shows, horse shows, carnivals/circuses, temporary worship services, and others.
TEMPORARY OUTDOOR SALES: Temporary uses, which may include temporary structures, where goods are sold, such as consignment auctions, arts and crafts fairs, flea markets, rummage sales, temporary vehicle sales, and holiday sales, such as Christmas tree lots and pumpkin sales lots. This temporary use category does not include outdoor sales related to a retail goods establishment where such goods are part of the establishment's regular items offered for purchase.
TEMPORARY USE: A use established for a set period of time, with the intent to discontinue such use upon the expiration of such time, that does not involve the construction of any permanent structure(s).
TOWNHOUSE: A dwelling within a row of two (2) or more adjoining dwelling units, separated from the others by one or more unpierced walls extending from ground to roof.
TRAILER: Any trailer, travel trailer, camping trailer, motorized home, or portable vehicle on wheels, skids, rollers, or blocks, either self-propelled or transportable by any other means, which is used for living, sleeping, storage, or commercial purposes.
TRANSITIONAL YARD: A yard which is on a lot in a nonresidential district which abuts a yard in a residential district, or a yard in a multi-family district which abuts an R-1 single-family district, which requires traditional landscape buffering.
UNDEVELOPED LAND: Land where infrastructure has not been installed and that has not been built on. Undeveloped land does not include land in agricultural use.
UNIFIED CONTROL: The combination of two (2) or more tracts of land wherein each owner has agreed that his tract of land will be developed under the same development approvals.
USE: The purpose or activity for which the land or structure is designed, arranged, or intended, or for which it is occupied or maintained.
UTILITY: All lines and facilities related to the provision, distribution, collection, transmission, or disposal of water, storm and sanitary sewage, oil, gas, power, information, telecommunication, and telephone cable, including facilities for the generation of electricity.
UTILITY, PRIVATE: Utilities that are not subject to City acceptance for operation or maintenance.
UTILITY, PUBLIC: Any person, firm, corporation, municipal department, or board duly authorized to furnish, and furnishing under state or municipal regulations to the public, electricity, gas, steam, communication, telegraph, transportation, or water.
VEHICLE DEALERSHIP: An establishment that sells or leases new or used automobiles, vans, motorcycles, and/or all-terrain vehicles (ATV) vehicles, or other similar motorized transportation vehicles. A motor vehicle dealership may maintain an inventory of the vehicles for sale or lease either on-site or at a nearby location, and may provide on-site facilities for the repair and service of the vehicles sold or leased by the dealership. Vehicle dealerships do not include truck, trailer, boat, or heavy equipment sales, which are considered heavy retail, rental, and service.
VEHICLE OPERATIONS FACILITY: A facility for the dispatch, storage, and maintenance of emergency medical care vehicles, taxicabs and similar vehicles for hire, school buses, utility vehicles, and similar vehicles. Vehicle operations facility does not include a public works or public safety facility.
VEHICLE RENTAL AGENCY: An establishment that rents automobiles and vans, including incidental parking and servicing of rental vehicles. A motor vehicle rental establishment may maintain an inventory of the vehicles for sale or lease either on-site or at a nearby location, and may provide on-site facilities for the repair and service of the vehicles sold or leased by the dealership. Vehicle rental does not include truck rental establishments or rental of heavy equipment, which is considered part of heavy retail, rental, and service.
VEHICLE REPAIR: A business that provides repair services to motor vehicles, motorcycles, and all-terrain vehicles (ATV) vehicles.
VIDEO DISPLAY SIGN: A sign, or portion of a sign, that displays an electronic video, whether pre-recorded or streaming.
VILLAGE: That area within the village limits of Clarendon Hills.
VILLAGE BOARD: The board of trustees of the village of Clarendon Hills.
VILLAGE MANAGER: The village manager of the village of Clarendon Hills or designee.
WALL: A constructed solid barrier of concrete, stone, brick, tile, or similar type of material that closes, marks, or borders a field, yard, or lot, and that limits visibility and restricts the flow of air and light.
WALL SIGN: A sign that is attached directly to an exterior wall of a building or dependent upon a building for support and projects eighteen inches (18") or less from the wall of a structure with the exposed face of the sign in a plane substantially parallel to the face of the wall. Window signs are not considered wall signs.
WALL SIGN
WAREHOUSE: An enclosed facility for the storage and distribution of manufactured products, supplies, and/or equipment.
WHITE ROOF: A roof designed to deliver high solar reflectance, reducing heat transfer to the building and the ability to radiate absorbed, or non-reflected solar energy.
WHOLESALE: A business where goods are sold to either retailers, or to industrial, commercial, institutional, or other professional business users, or to other wholesalers and related subordinated services.
WIND TURBINE: A device that converts the wind's kinetic energy into electrical energy. Also called a wind energy converter.
WINDOW SIGN: A sign that is attached to, placed upon, or printed on the interior or exterior of a window or door of a building, or displayed on the interior within two feet (2’) of a window intended for viewing from the exterior of such a building. A window sign may be either permanent or temporary. Shadowbox design within display windows, where the window display is designed with a background enclosure against which signs are mounted that blocks view into the establishment, is considered a window sign and the entire area of the shadowbox is subject to the maximum sign area limitation.
WINDOW SIGN
YARD: Defined in Section 20.2.4.
YARD, CORNER SIDE: Defined in Section 20.2.4.
YARD, FRONT: Defined in Section 20.2.4.
YARD, INTERIOR SIDE: Defined in Section 20.2.4.
YARD, REAR: Defined in Section 20.2.4.
ZONING ADMINISTRATOR: The Community Development Director of the Village of Clarendon Hills, or designee, assigned the duties and responsibilities of zoning enforcement and administration.
ZONING BOARD: The Zoning Board of Appeals/Plan Commission (ZBA/PC) of the Village of Clarendon Hills.
ZONING LOT: A lot or combination of lots within a single block, which is designated by its owner or developer to be used, developed, or built upon as a unit. A zoning lot may or may not coincide with a lot of record.
ZONING LOT LINE: A property line forming the front, side or rear boundary of a zoning lot.
ZONING MAP: The map or maps that are a part of this Chapter and which delineate the boundaries of all mapped zoning districts within the physical boundary of the Village.
(Ord. 19-10-26; amd. Ord. 22-10-22)
This section provides the rules of measurement for the dimensional standards and locational characteristics within this Chapter.
(Ord. 19-10-26)
2 DEFINITIONS AND RULES OF MEASUREMENT
(Ord. 19-10-26)
The following abbreviations may be used within this Chapter:
(Ord. 19-10-26)
ABUT: To share a common wall or lot line without being separated by a street or alley.
ACCESSIBILITY RAMP: A ramp or similar structure that provides wheelchair or similar access to a structure.
ACCESSORY BUILDING: A detached, roofed-over structure that is incidental, customary and subordinate to the use of the principal building.
ACCESSORY STRUCTURE: A detached structure, other than an accessory building, located on the same lot as the principal building that is incidental to the use of the principal building.
ACCESSORY USE: A use of land or a structure, or portion thereof, customarily incidental and subordinate to the principal use of the land or structure.
ADDITION: Construction that increases the size of a structure in terms of building footprint, height, or floor area.
ADJACENT: To lie near or close to; in the neighborhood or vicinity of.
ADJOIN: Touching or contiguous, as distinguished from adjacent.
A-FRAME SIGN: A temporary sign ordinarily in the shape of the letter “A” or some variation thereof, which is displayed on the ground, not permanently attached to the ground, and usually two-sided, generally connected at the top and separated at the bottom.
A-FRAME SIGN
ALLEY: A public right-of-way that normally affords a secondary means of access to abutting property.
AMATEUR (HAM) RADIO EQUIPMENT: An amateur (HAM) radio station licensed by the Federal Communications Commission (FCC), including equipment such as, but not limited to, a tower or building-mounted structure supporting a radiating antenna platform and other equipment.
AMUSEMENT FACILITY - INDOOR: A facility for spectator and participatory uses conducted within an enclosed building, such as movie theaters, gymnasiums (excluding those within public parks), sports arenas, bowling alleys, tumbling centers, skating centers, roller rinks, and pool halls. An indoor amusement facility may include ancillary uses such as, but not limited to, concession stands, restaurants, and retail sales.
AMUSEMENT FACILITY - OUTDOOR: A facility for spectator and participatory uses conducted outdoors or within partially enclosed structures, such as outdoor stadiums, fairgrounds, batting cages, miniature golf courses, and amusement parks. An outdoor amusement facility may include ancillary uses such as, but not limited to, concession stands, restaurants, and retail sales.
ANCILLARY: In regard to principal uses, additional uses part of the larger principal use that provide support and/or are typically integral to a principal use.
ANIMAL CARE FACILITY: A business which provides care for domestic animals, including veterinary offices for the treatment of animals, where animals may be boarded during their convalescence, pet grooming facilities, and pet boarding facilities, where animals are boarded during the day or for overnight stays.
ANIMAL KENNEL, COMMERCIAL: An establishment where dogs over six (6) months of age are boarded, bred, raised, and trained for commercial gain. A commercial animal kennel does not include animal shelters or shelter and training facilities for canine units of public safety agencies.
ANIMAL SHELTER: An establishment that houses and provides care for homeless, lost, or abandoned dogs, cats, and/or other animals until such animals are reclaimed by their owner, placed in a new home, placed with another organization for adoption, and/or euthanized.
ANIMATED SIGN: A sign that uses moving or changing lights to depict action, movement, or the optical illusion of movement of part of the sign structure, sign, or pictorial segment, or including the movement of any illumination or the flashing or varying of light intensity to create a special effect or scene. Animated signs do not include electronic message signs.
APIARY: A structure for the keeping of honeybees.
ARCHITECTURAL FEATURE: A part or projection that contributes to the aesthetics of a structure, exclusive of signs, that is not necessary for the structural integrity of the structure or to make the structure habitable.
ART GALLERY: An establishment that sells, loans and/or displays paintings, sculpture, photographs, video art, or other works of art. Art gallery does not include a cultural facility, such as a library or museum, which may also display paintings, sculpture, photographs, video art, or other works.
ARTS STUDIO: An establishment where an art, type of art or activity is taught, studied, or practiced such as dance, martial arts, photography, music, painting, gymnastics, pilates, or yoga. An arts studio also includes private exercise studios for private sessions with trainers and/or private classes.
ATTENTION GETTING DEVICE: Signs, devices, or ornamentations designed for the purpose of attracting attention or promotion, except as otherwise expressly permitted in this Article. Attention getting devices include banners, sails/feather signs, temporary on-premise pole signs, and the like. Federal, state, or local flags, or flags of fraternal, religious, and civic organizations, banners, and temporary holiday decorations are not considered attention getting devices.
ATTENTION GETTING DEVICE: EXAMPLES
SAIL/FEATHER SIGN
TEMPORARY POLE SIGN
WALL-MOUNTED BANNER
GROUND-MOUNTED BANNER
AVERAGE GROUND ELEVATION: The average level of the ground on a zoning lot existing prior to any reshaping of the natural contours at the four corners of a structure or proposed structure that are closest to the lot lines. When the existing natural ground level slopes down toward a lot line from any such corner, then the level of the ground for such corner shall be measured at the lowest point lying within six feet (6') of such corner which is outside the bounds of the structure or proposed structure.
AWNING: An awning is a roof-like cover designed for protection from the weather or as a decorative embellishment, which projects from a wall or roof of a structure over a window, walkway, or door, with no supports that extend to the ground.
AWNING SIGN: An awning sign is a sign printed or displayed upon an awning.
AWNING SIGN
BALCONY: A roofed or unroofed platform that projects from the exterior wall of a structure above the ground floor, which is exposed to the open air, has direct access to the interior of the building, and is not supported by posts or columns extending to the ground.
BALLOON SIGN: A sign or advertising device designed to be airborne or inflated and tethered to the ground or other structure. This includes any air-inflated signs and any signs that inflate and move via air inflation.
BANNER: A sign with copy on non-rigid material, such as cloth, plastic, fabric or paper mounted with or without rigid frames on a building or the ground that is not supported by a framework.
BAR: An establishment for the sale of alcoholic beverages for consumption on the premises. Snack foods or other prepared food may be available for consumption on the premises as an ancillary use.
BASEMENT: Habitable space in a building that is predominantly underground.
BAY WINDOW: A cantilevered window that projects outward from the structure, which does rest upon the building's foundation. A bay window shall not count toward building coverage or impervious surface coverage.
BED AND BREAKFAST: A single-family detached dwelling where a resident/owner, who lives on the premises, provides lodging for a daily fee in guest rooms with no in-room cooking facilities and prepares meals for guests.
BILLBOARD: See off-premise commercial sign – permanent.
BLADE (PROJECTING) SIGN: A sign that is attached to a rigid structure that extends more than eighteen inches (18”) beyond the surface of the structure to which it is attached. A marquee sign is not considered a blade sign.
BLADE (PROJECTING SIGN)
BLOCK: Defined in Section 20.2.4.
BLOCKFACE: Defined in Section 20.2.4.
BLUE ROOF: A roof designed to store water and discharge rainfall.
BODY MODIFICATION ESTABLISHMENT: An establishment that offers tattooing services, body piercing, and/or non-medical body modification. Body modification establishment does not include an establishment that offers only ear piercing as an ancillary service.
BOOK EXCHANGE BOX: An outdoor accessory structure maintained by a property owner on private property where books and recorded performing arts and media are kept for public and/or exchanges with no fees or sales and are publicly accessible.
BREW PUB: A restaurant-based establishment where beer is manufactured and stored on the licensed premises and sold at retail from storage tanks to non-licensees, and sold in packages to importing distributors, distributors, and non-licensees in accordance with the brewpub license. The brewing capacity is limited to less than six thousand (6,000) barrels per year.
BROADCASTING FACILITY - TV/RADIO: A facility engaged in broadcasting and information relay services for radio and television signals, including studio facilities. A broadcasting facility may or may not include antennas to broadcast the signal.
BUFFER YARD: Land area with landscape plantings and other components used to separate one use from another and to shield or block noise, lights, or other nuisances.
BUILD-TO LINE (BTL): Defined in Section 20.2.4.
BUILD-TO PERCENTAGE: Defined in Section 20.2.4.
BUILD-TO ZONE (BTZ): Defined in Section 20.2.4.
BUILDABLE AREA: The portion of a lot, excluding required setbacks, where a structure or building improvements may be erected.
BUILDABLE LOT: A zoning lot which meets the minimum lot size requirements for erection of a structure in the zoning district in which the zoning lot is located.
BUILDING: A structure enclosed by four (4) walls and a roof used or intended for supporting or sheltering any use or occupancy.
BUILDING COVERAGE: Defined in Section 20.2.4.
BUILDING ENVELOPE: The three-dimensional space within which a structure is permitted to be built on a lot and which is defined by regulations governing building setbacks, maximum height, and bulk, by other regulations, and/or by any combination thereof.
BUILDING HEIGHT: Defined in Section 20.2.4.
BUILDING LINE: A line measured at the building wall of a structure between parallel lot lines. For the purposes of establishing a building line, the building wall does not include permitted encroachments of architectural features, such as bay windows, eaves, and steps and stoops.
BUILDING PAD: The actual foundation area of a building and a ten foot (10’) clear area around the foundation necessary for construction and grade transitions.
BUILDING, TEMPORARY: Any building not designed to be permanently located at the place where it is or where it is intended to be temporarily placed or affixed.
BULK: The term used to indicate the size and volume of buildings or structures, the relation of same with respect to one another, and includes the following:
BUSINESS: An occupation, employment or enterprise which occupies time, attention, labor and materials; or wherein merchandise is exhibited or sold or where services are offered.
CALIPER: Defined in Section 20.2.4.
CAMPGROUND: An area to be used for transient occupancy by camping in tents, camp trailers, travel trailers, motor homes, or similar movable or temporary sleeping quarters.
CANOPY: A canopy is a roof-like cover designed for protection from the weather or as a decorative embellishment affixed to a building, or which is freestanding, and with supports that extend to the ground. A canopy may be one of two types:
CANOPY SIGN: A canopy sign is a sign printed, mounted, or installed upon a canopy.
CAR WASH: An establishment for the washing and cleaning of vehicles or other light duty equipment, whether automatic, by hand, or self-service. The car wash facility may be within an enclosed structure, an open bay structure, or similar configurations.
CARPORT: An open-sided roofed vehicle shelter, usually formed by extension of the roof from the side of a building, but may be freestanding.
CEMETERY: Land and structures reserved for the interring of human remains or the interring of animal remains. Cemeteries may include structures for performing religious ceremonies related to the entombment of the deceased, mortuaries, including the sales of items related to the internment of remains, and related accessory structures, such as sheds for the storage of maintenance equipment.
CHANGEABLE COPY: Letters, numerals, or other graphics that are not permanently affixed to a structure and/or set for permanent display, and are intended to be alterable through manual means.
CHANGEABLE MESSAGE BOARD SIGN: A sign designed where a portion of the sign area allows for a message to be changed manually. A changeable message board sign does not include electronic message signs or portable reader-board sign.
CHANGEABLE MESSAGE BOARD SIGN
CHICKEN COOP: A structure where hens are kept.
CHIMNEY: A vertical shaft of reinforced concrete, masonry or other approved material enclosing one or more flues, for the purpose of removing products of combustion from solid, liquid, or gaseous fuel.
CISTERN: An enclosed structure that is entirely below grade used for storing rain water for use at a later time.
CLEAR-CUTTING: The act of cutting and removing most or all trees from a stand of timber.
CLUSTER DESIGN: A subdivision design that allows for smaller lot sizes but remains lot neutral as compared to a tradition subdivision layout. Cluster design is intended to promote environmentally sensitive development, to preserve the natural and scenic qualities of open space, and to achieve a balance between aesthetically pleasing, well-designed neighborhoods, meaningful open space conservation, and natural resource protection.
COMMERCIAL VEHICLE: Commercial vehicle means any self-propelled or towed motor vehicle used on a highway in interstate commerce to transport passengers or property when the vehicle meets one or more of the following:
COMMUNITY CENTER: Community Center:
COMMUNITY GARDEN: The cultivation of fruits, flowers, vegetables, or ornamental plants by more than one person or family. Community gardens do not include the raising of livestock or the use of heavy machinery.
CONDITIONAL USE: Conditional uses are those whose effects on surrounding property cannot be foreseen until the use is proposed. These particular types of uses may give rise to unique problems with respect to their impact upon neighboring property or public facilities if established in some locations within a zoning district.
CONSERVATION AREA: Designated open space that preserves and protects natural features, wildlife, and critical environmental features. A conservation area may include opportunities for passive recreation, such as hiking trails and lookout structures, and environmental education.
CONSERVATION DESIGN: A subdivision design that evaluates land features and if applicable requires a percentage of conserved open space while allowing for a slight increase in the number of allowable lots. Conservation design is intended to promote environmentally sensitive development, to preserve the natural and scenic qualities of open space, and to achieve a balance between aesthetically pleasing, well-designed neighborhoods, meaningful open space conservation, and natural resource protection.
CONTIGUOUS: See abut.
CONTRACTOR OFFICE – WITH EQUIPMENT STORAGE: Offices for businesses in the conduct of any building trade or building craft, together with land and/or structures used for the storage of equipment, vehicles, machinery, or building materials related to and used by the building trade or craft. A contractor office with no equipment storage is considered an office.
CROSS-ACCESS: A vehicular and/or pedestrian connection between abutting properties that connects the two (2) sites and allows vehicles and/or pedestrians to travel between sites without the having to exist to the street.
CULTURAL FACILITY: A facility open to the public that provides access to cultural exhibits and activities including, but not limited to, museums, cultural centers, non-commercial galleries, historical societies, and libraries. A cultural facility may include uses such as, but not limited to, retail sales of related items, and restaurants as ancillary uses.
DAY: A calendar day.
DAY CARE CENTER: A commercial facility where, for a portion of a twenty-four (24) hour day, care and supervision is provided for:
DAY CARE HOME: A residential dwelling where care and supervision is provided by a permanent occupant of the dwelling for:
DECK: A roofless outdoor space built as an aboveground platform projecting from the wall of a structure and connected by structural supports at grade or by the structure.
DEVELOPMENT: The construction, reconstruction, conversion, structural alteration, relocation, or enlargement of any structure, any mining, excavation, landfill or land disturbance, or any change in use, or alteration or extension of the use, of land.
DRAINAGEWAY: A route or course along which water moves or may move to drain an area.
DRIVE-THROUGH FACILITY: That portion of a business where business is transacted directly with customers via a service window that allows customers to remain in their vehicle. A drive-through facility is approved separately as a principal use in conjunction with other principal uses such as restaurants and financial institutions.
DRIVEWAY: A pathway for motor vehicles from a street to a lot used only for service purposes or for access to the lot.
DWELLING: A building, or portion thereof, designed or used exclusively for human habitation, including single-family dwellings - detached and attached, two-family dwellings, townhouse dwellings, and multi-family dwellings, but excluding manufactured homes and hotels. A dwelling contains: (1) a kitchen; (2) one or more bedrooms; and (3) lavatory.
DWELLING, MANUFACTURED HOME: A manufactured home dwelling is a prefabricated structure that is regulated by the U.S. Department of Housing and Urban Development (HUD), via the Federal National Manufactured Housing Construction and Safety Standards Act of 1984, rather than local building codes. A manufactured home is built in a factory on an attached chassis before being transported to a site. Manufactured homes include those transportable factory built housing units built prior to the Federal National Manufactured Housing and Safety Standards Act (HUD Code), also known as mobile homes. Modular homes are not considered manufactured homes, and refer to a method of construction.
DWELLING, MULTI-FAMILY: A structure containing three (3) or more attached dwelling units used for residential occupancy on a single lot. A multi-family dwelling does not include a townhouse dwelling.
DWELLING, SINGLE-FAMILY - DETACHED: A structure containing only one dwelling unit on a single lot.
DWELLING, TOWNHOUSE: A structure that that contains two (2) or more dwelling units attached by a party wall on separate lots or separate tax parcels.
DWELLING, TWO-FAMILY: A structure containing two (2) dwelling units on a single lot.
EASEMENT: A grant by a property owner for the use of a strip or area of land by the City, a public utility, a corporation, or a person for specified purposes.
EAVE: The projecting lower edges of a roof overhanging the wall of a structure.
EFFECTIVE DATE: The date the Zoning Ordinance goes into effect. The adoption date and the effective date may be the same, or the effective date, as stated in the adopting ordinance, may be established at a later date after the adoption date.
ENCROACHMENT: The extension or placement of any structure, or a component of such, into a required setback or right-of-way.
ELECTRIC VEHICLE (EV) CHARGING STATION: An accessory structure that provides electric energy for the recharging of electric vehicles.
ELECTRONIC MESSAGE SIGN: A sign designed where a portion of the sign area uses changing light emitting diodes (LEDs), fiber optics, light bulbs or other illumination devices within the electronic display panel(s) to form a message or messages in text and/or image from where the sequence of messages and the rate of change is electronically programmed and can be modified by electronic processes. Time/temperature signs are not considered electronic message signs. Flashing signs, animated signs, and video display signs are not considered electronic message signs.
ELECTRONIC MESSAGE SIGN
ENERGY SYSTEM - SOLAR (PRINCIPAL): An energy system operated by a public, private, or cooperative company for the generation, transmission, distribution, storage, or processing of solar energy.
ENERGY SYSTEM - WIND (PRINCIPAL): An energy system operated by a public, private, or cooperative company for the generation, transmission, distribution, or processing of wind energy.
ERECT: To build, construct, attach, hang, place, suspend, or affix.
EXTERIOR LIGHTING: The illumination of an outside area or object by any man-made device that produces light by any means.
EXTERIOR STAIRWELL: One or more flights of stairs, and the necessary landings and platforms connecting them, to form a continuous passage from the entryway of a floor or level to another in a structure located on the exterior of a principal building.
EXTERNAL ILLUMINATION: Illumination by an artificial source of light not internal to the sign face.
FAMILY: An individual, or two (2) or more persons related by blood, marriage, or civil union, and all adopted or foster children, or a group of not more than four (4) persons, (excluding servants), not so related, living together as a single housekeeping unit in a dwelling unit.
FARMER'S MARKET: Temporary use of structures and/or land for the sale of a variety of fresh fruits, flowers, vegetables, or ornamental plants, and other locally produced farm and food products, including value-added products, directly to consumers from two (2) or more farmers or from vendors that have taken such items on consignment for retail sale. Not on use table.
FENCE: A vertical manmade structure, which is a barrier and used as a boundary or means of protection, confinement or decoration.
FINANCIAL INSTITUTION: An institution licensed as a receiver of deposits, a savings and loan, credit union, or mortgage office.
FLAG: Flags of any nation, state, municipality, or political subdivision, flags officially designated as a national, state, or local symbol, or flags of fraternal, religious, and civic organizations. Pennants and sails are not considered flags
FLASHING SIGN: A sign with an intermittent or sequential flashing light source used primarily to attract attention. Flashing signs do not include electronic message signs.
FLOODLIGHT: A powerful light, typically in a grouping of several lights, used to illuminate the exterior of a building or sign.
FLOOR AREA: Defined in Section 20.2.4.
FLOOR AREA RATIO: Defined in Section 20.2.4.
FOOT-CANDLE: A unit of measure of illuminance equal to one lumen of light spread over an area of one square foot.
FRONTAGE: The frontage of a zoning lot is the length of property of such zoning lot on the front lot line and is measured between side zoning lot lines.
FULL CUTOFF LUMINAIRE: A luminaire having zero intensity at or above horizontal ninety percent (90°) and limited to a value not exceeding ten percent (10%) of lamp lumens at or above eighty degrees (80°). Such luminaire is determined by a photometric test and certified by the manufacturer.
FUNERAL HOME: An establishment where the dead are prepared for burial display and for rituals before burial or cremation, including chapels for the display of the deceased and the conducting of rituals before burial. A funeral home may or may not perform cremation and have crematoriums.
GARAGE: A structure, either attached or detached, used for the parking and storage of vehicles as an accessory use to a residence. For the purposes of this definition, garage does not include a commercial parking structure.
GARAGE SALE: Means and includes "garage sale", "basement sale", "backyard sale", "estate sale," or any similar type of sale of three (3) or more household items and "arts and crafts sale" of handcrafted items which are held on residential premises and to which the general public is invited.
GAS STATION: An establishment where fuel for vehicles is stored and dispersed from fixed equipment into the fuel tanks of motor vehicles. A gas station may also include ancillary retail uses, an ancillary car wash bay, ancillary minor vehicle repair facilities, and solar and/or electric charging stations.
GAZEBO: A freestanding outdoor structure designed for recreational use and not for habitation.
GLARE: Light emitting from a luminaire with an intensity great enough to reduce a viewers' ability to see, cause discomfort, and, in extreme cases, cause momentary blindness.
GOLF COURSE/DRIVING RANGE: A tract of land design with at least nine (9) holes for playing a game of golf and improved with tees, greens, fairways, and hazards. A golf course may include a clubhouse, restrooms and shelters, and country club facilities. A driving range may be designed as a standalone facility or included as part of a larger golf course.
GOVERNMENT FACILITY: Facilities owned, operated, or occupied by a governmental agency to provide a governmental service to the public. Government offices do not include public safety or public works facilities.
GRADE: The highest level of the finished surface of the ground adjacent to the exterior walls of the building or structure.
GREEN ROOF: A building roof partially or completely covered with vegetation and a growing medium, planted over a waterproofing membrane. It may also include additional layers such as a root barrier and drainage and irrigation systems.
GREENHOUSE (ACCESSORY): A structure constructed chiefly of glass, glasslike or translucent material, cloth, or lath, which is devoted to the protection or cultivation of flowers or other tender plants.
GROSS AREA: The total land and water area included in a parcel excluding property solely located in public rights of way or private easements of access or egress.
GROSS FLOOR AREA (GFA): Defined in Section 20.2.4.
GROUND SIGN: A sign that is placed on or supported by the ground, independent of the principal structure on the lot, designed with a monument base that is an integral part of the sign structure. A ground sign must be designed so that the width of the top of the sign face is a minimum of 70% and a maximum of 130% of the width of the base, unless designed with decorative posts as permitted by the ground sign regulations of this Article. There are three (3) types of ground signs regulated by this Article:
GROUND SIGN
GROUP HOME - LARGE: A dwelling unit occupied as a common household for specialized residential care for persons with disabilities in need of personal services or assistance essential for activities of daily living or in need of supervision and occupied by a number of residents that exceed the number of persons allowed by the definition of “family”.
GROUP HOME - SMALL: A dwelling unit occupied as a common household for specialized residential care for persons with disabilities in need of personal services or assistance essential for activities of daily living or in need of supervision and occupied by a number of residents that is equal to or less than the number of persons allowed by the definition of “family”.
HEALTHCARE FACILITY: Facilities for primary health services and medical or surgical care to people, primarily in-patient, and including, as an integral part of the institution, related facilities such as laboratories, outpatient facilities, dormitories, or educational facilities, and ancillary uses such as, but not limited to, cafeterias, restaurants, retail sales, and similar uses.
HEAVY RETAIL, RENTAL, AND SERVICE: Retail, rental, and/or service establishments of a heavier and larger-scale commercial character typically requiring permanent outdoor service or storage areas and/or partially enclosed structures. Examples of heavy retail, rental, and service establishments include large-scale home improvement centers with outdoor storage, display, and rental components, lumberyards, truck rental establishments, and sales, rental, and repair of heavy equipment. Wholesale establishments that sell to the general public, including those establishments where membership is required, are considered heavy retail, rental, and service establishments.
HEDGE: A row of closely planted shrubs, bushes, or any kind of plant forming a boundary.
HOME-BASED BUSINESS/HOME OCCUPATION: Any commercial activity carried out for economic gain by a resident, conducted as an accessory use in the resident's dwelling unit.
HOTEL: A facility that provides sleeping accommodations for a fee and customary lodging services. Related ancillary uses include, but are not be limited to, meeting facilities, restaurants, bars, and recreational facilities for the use of guests.
IMPERVIOUS SURFACE COVERAGE RATIO: Defined in Section 20.2.4.
INDUSTRIAL DESIGN: An establishment where the design, marketing, brand development and sales of various products are researched and developed. An industrial design establishment may create prototypes of products, but may not manufacture products for direct sale and distribution from the premises.
INDUSTRIAL – GENERAL: The manufacturing of products from processed or unprocessed raw materials, including processing, fabrication, assembly, treatment, and packaging of such products, and incidental storage, sales, and distribution of such products. This manufacturing may produce noise, vibrations, illumination, or particulate that is perceptible to adjacent land users. These industrial uses typically have ancillary outdoor storage areas.
INFRASTRUCTURE: Facilities and services needed to sustain residential, commercial, industrial, institutional, and other activities, including, but not limited to, water lines, sewer lines, and rights-of-way.
INSTALLED HEIGHT: The height above grade of the lowest light emitting point of an installed luminaire.
INTENSITY OF USE: Square feet of gross floor area, number of dwelling units, number of employees, or other factor used as a basis for requiring off-street parking or loading facilities.
LANDSCAPE BUSINESS: A business that provides services designing, installing, planting or maintaining yards, gardens, or other outside grounds, and where equipment, supplies, and plant material may be grown or stored on-site. A landscape business may include plant material available for retail sales.
LANDSCAPING: Living plants including grass, shrubs and trees.
LIGHT POLE BANNER: Banners mounted on and with arms installed perpendicular to light poles.
LIGHT POLE BANNER
LIVE ENTERTAINMENT: A venue that stages live performances, performed live by one or more persons including, but not limited to, musical acts including disc jockeys (DJs), theatrical plays, performance art, stand-up comedy, and magic, and may be included as part of the operation of a bar, restaurant, amusement facility, or similar use.
LOADING BERTH: A space within a loading facility exclusive of driveways, aisles, maneuvering areas, ramps, columns, landscape, and structures for the temporary parking of a commercial delivery vehicle while loading or unloading goods or materials.
LOT: Defined in Section 20.2.4.
LOT AREA: Defined in Section 20.2.4.
LOT, CORNER: Defined in Section 20.2.4.
LOT DEPTH: Defined in Section 20.2.4.
LOT, INTERIOR: Defined in Section 20.2.4.
LOT LINE: Defined in Section 20.2.4.
LOT LINE, CORNER: Defined in Section 20.2.4.
LOT LINE, FRONT: Defined in Section 20.2.4.
LOT LINE, INTERIOR: Defined in Section 20.2.4.
LOT LINE, REAR: Defined in Section 20.2.4.
LOT LINE, STREET: Defined in Section 20.2.4.
LOT OF RECORD: A parcel of land that was lawfully recorded per the requirements of this Chapter.
LOT SIZE: See Lot Area.
LOT, THROUGH: Defined in Section 20.2.4.
LOT WIDTH: Defined in Section 20.2.4.
LUMEN: A unit of measure of luminous flux.
LUMINAIRE, LIGHT LUMINAIRE: The complete lighting assembly (including the lamp(s), housing, ballasts, photocells, globes, reflectors or refractors, lenses, sensors and shield(s) and excluding the support assembly or pole, mounting bracket and base) consisting of one or more lamps, together with the attachment parts designed to distribute light, position and connect the lamp to the power supply.
MARQUEE: A permanent roof-like structure constructed of permanent building materials that extends from the wall of a structure with no supports extending to the ground providing protection from the elements.
MARQUEE SIGN: A sign that is a part of or attached to a marquee. Where designed as a changeable message, sign, the changeable message portion may be manually changed or electronically changed when permitted by this Article.
MARQUEE SIGN
MECHANICAL EQUIPMENT: Equipment installed as part of the principal building or site operation including, but not limited to, heating, ventilation, and air conditioning (HVAC) equipment, elevator bulkheads, and electrical generators.
MEDICAL/DENTAL OFFICE: A facility operated by one or more physicians, dentists, chiropractors, psychiatrists, physiotherapists, or other licensed practitioners of the healing arts for the examination and treatment of persons solely on an outpatient basis. Medical/dental offices also include alternative medicine clinics, such as acupuncture and holistic therapies, and physical therapy offices for physical rehabilitation.
MEDICAL CANNABIS DISPENSING ORGANIZATION: A facility as defined in the compassionate use of medical cannabis pilot program act, 410 Illinois Compiled Statutes 130/1 et seq. (the "act"), subject to said medical cannabis dispensing organization being otherwise in full compliance with the act, including, but not limited to, the location restrictions as set forth in the act.
MENUBOARD: A sign constructed as part of drive-through facilities.
MENUBOARD
MICRO-BREWERY: A facility for the production and packaging of malt beverages of alcoholic content for wholesale distribution, with a capacity of less than 15,000 barrels per year and may include a tasting room. A tasting room allows customers to taste samples of products manufactured on site and purchase related sales items; ancillary live entertainment for patrons of the tasting room is also permitted. Sales of alcohols manufactured outside of the facility are prohibited. (See "general industrial" for capacity in excess of 15,000 barrels per year.)
MICRO-DISTILLERY: A facility for the production and packaging of alcoholic beverages in quantities not to exceed 25,000 gallons per year and may include a tasting room. A tasting room allows customers to taste samples of products manufactured on site and purchase related sales items; ancillary live entertainment for patrons of the tasting room is also permitted. Sales of alcohols manufactured outside of the facility are prohibited. (See "general industrial" for capacity in excess of 25,000 gallons per year.)
MICRO-WINERY: A facility for the production and packaging of any alcoholic beverages obtained by the fermentation of the natural contents of fruits or vegetables, containing sugar, including such beverages when fortified by the addition of alcohol or spirits, in quantities not to exceed 25,000 gallons per year and may include a tasting room. A tasting room allows customers to taste samples of products manufactured on site and purchase related sales items; ancillary live entertainment for patrons of the tasting room is also permitted. (See "general industrial" for capacity in excess of 25,000 gallons per year.)
MOTEL: An establishment that is designated for transient guests and which provides individual entrances to dwelling units from outside the building.
MOVING SIGN: A sign where the entire sign structure or a portion of which rotates, moves, elevates, or in any way alters position or geometry. A tri-vision sign where triangular prisms rotate inside a frame to show a new message and/or information are considered moving signs. Moving signs do not include clocks or barber poles.
MULTI-TENANT RETAIL CENTER: A group of three (3) or more commercial establishments that is planned, owned, and/or managed as a single property. The two (2) main configurations of multi-tenant retail centers are large shopping centers/malls and strip centers.
NEON: A source of light for externally lit street signs supplied by a neon tube that is bent to form letters, symbols, or other shapes.
NET AREA: The gross area of a parcel less land and water area required or proposed to be publicly dedicated. Land and water areas not so publicly dedicated or devoted shall be included in the calculation of net area.
NITS: A luminance unit equal to one candle per square meter measured perpendicular to the rays from the source
NONCOMMERCIAL: A noncommercial message does not direct attention to a business, product, service, commercial entertainment, or other commercial activity offered on or off the premises.
NONCONFORMING LOT: A lot of record that at one time conformed to the lot dimension requirements (lot area, lot width, lot depth) of the zoning district in which it is located but because of subsequent amendments to this Chapter no longer conforms to the applicable lot dimensions.
NONCONFORMING SIGN: A sign that once conformed to zoning district regulations but because of subsequent amendments to this Chapter no longer conforms to applicable sign regulations.
NONCONFORMING SITE ELEMENT: A site development element, such as landscape, fences or walls, lighting, and parking, that at one time conformed to the requirements of this Chapter but because of subsequent amendments, has been made nonconforming.
NONCONFORMING STRUCTURE: A principal or accessory structure that once conformed to zoning district regulations but because of subsequent amendments to this Chapter no longer conforms to applicable dimensional standards.
NONCONFORMING USE: The use of a structure or land that at one time was an allowed use within a zoning district but because of subsequent amendments to this Chapter is no longer allowed.
NON-RESIDENTIAL USE: A structure or land arranged, designed, used, or intended to be used for non-residential uses, which includes, but is not limited to, retail, office, entertainment, recreation, public, institutional, and other non-residential uses. Structures with dwellings above ground floor non-residential uses are considered mixed-use development and considered a non-residential use for the purposes of this Chapter.
NURSERY/GREENHOUSE – RETAIL: An establishment where flowers, shrubbery, vegetables, trees, and other horticultural and floricultural products are propagated and sold, and may include gardening and landscape supplies and products, such as hardware, garden tools and utensils, paving stones and bricks, and other related items for sale.
OFFICE: An establishment that engages in the processing, manipulation, or application of business information or professional expertise. Such an office may or may not offer services to the public. An office is not materially involved in fabricating, assembling, or warehousing of physical products for the retail or wholesale market, nor engaged in the repair of products or retail services. An office does not include bank or financial institution, government facility, or industrial design.
OFF-PREMISE COMMERCIAL SIGN – PERMANENT: A permanent sign directing attention to a specific business, product, service, entertainment event, activity, or other commercial activity that is not sold, produced, manufactured, furnished, or conducted at the property upon which the sign is located. Also called a billboard.
OFF-PREMISE COMMERCIAL SIGN – TEMPORARY: A temporary sign directing attention to a specific business, product, service, entertainment event, activity, or other commercial activity that is not sold, produced, manufactured, furnished, or conducted at the property upon which the sign is located. This includes any ground-mounted, building-mounted, or sign painted, pasted, or otherwise affixed to any tree, rock, fence, utility pole, hydrant, bridge, sidewalk, parkway, curb or street, bench, or trash receptacle that directs attention off-premises.
OFF-STREET PARKING: The storage space for an automobile on premises other than streets or rights-of-way.
OPEN SPACE: That portion of land, either landscaped or left unimproved, which is used to meet active or passive recreation or spatial needs, and/or to protect water, air, or plant resources.
ORGANIZED SPORTING EVENT: A prearranged sports or recreational event involving at least one group or team with a roster and schedule.
OUTDOOR DINING: A seating area that is located outdoors and contiguous to a restaurant or bar/brew pub, typically in addition to an indoor seating area. Outdoor dining is approved separately as a principal use. Outdoor dining areas may be roofed or covered with an awning.
OUTDOOR STORAGE: The storage of material outdoors as a principal use of land.
OUTLOT: An area of land set aside within a retail center for a separate principal building that shares a circulation system and may share common parking with the larger retail center development but is separated from the principal building or buildings, typically located along the property line.
OWNER: Any person, including the owner of the title or a mortgage whose interest is shown of record in the mortgage and conveyance records; a person shown as owner in the records of the tax assessor of the county in which the property is situated; or the agent of any such person and those in possession of a dwelling, dwelling unit, or premises.
PARAPET: The extension of a false front or wall above a roof-line.
PARK: A facility that serves the recreational needs of residents and visitors. Park includes, but is not limited to, playgrounds, ballfields, football fields, soccer fields, basketball courts, tennis courts, dog parks, skateboard parks, passive recreation areas, and gymnasiums. Public parks may also include non-commercial indoor or outdoor amusement facilities, including zoos and amphitheaters, ancillary uses such as, but not limited to, restaurant and retail establishments, and temporary outdoor uses such as festivals and performances.
PARKING LOT: An open, hard-surfaced area, other than a street or public way, used for the storage of operable vehicles, whether for compensation or at no charge. This includes park-and-ride lots, where commuters and others park their vehicles and transfer to a bus, rail system (rapid transit, light rail, or commuter rail), or carpool, and the vehicle is left in the lot during the day and retrieved when the owner returns.
PARKING STRUCTURE: A structure of one or more levels or floors used for the parking or storage of operable vehicles, whether for compensation or at no charge.
PARTY WALL: A wall starting from the foundation and extending continuously through all stories to or above the roof that separates one building from another, but is in joint use by each building.
PATIO: A hard surface designed and intended for recreational use by people and not used as a parking space.
PENNANT: Any lightweight plastic, fabric or other material, whether or not containing a message of any kind, suspended from a rope, wire, or string, usually in series, designed to move in the wind.
PERFORMANCE STANDARDS: A set of criteria or limits relating to elements that a particular use or process must either meet or may not exceed.
PERGOLA: A freestanding, open structure that forms a partially shaded pedestrian walkway, passageway, or sitting area, and is constructed of a semi-open roof and vertical posts that support cross-beams and a sturdy open lattice. It may also be used as an extension of a building entryway.
PERMEABLE PAVING: A system of materials and techniques for paving roads, driveways, parking lots, walkways and similar surfaces that is designed to reduce the peak flow of runoff of water falling on the surface in a typical rainfall event by at least thirty three percent (33%) by allowing water to permeate through the surface material into an aggregate subbase, and eventually infiltrate the soil lying directly below, as determined by the director of community development.
PERMITTED USE: A use that is allowed in a zoning district without special approvals that meets the standards of this Chapter.
PERSONAL SERVICE ESTABLISHMENT: An establishment that provides frequent or recurrent needed services of a personal nature. Typical uses include, but are not limited to, beauty shops, barbershops, tanning salons, electronics repair shops, nail salons, laundromats, health clubs, dry cleaners, and tailors.
PERVIOUS PAVING: A range of sustainable materials and techniques for permeable paving with a base and sub-base that allow the movement of stormwater through the surface. Gravel and loose rock are not considered pervious paving.
PLACES OF WORSHIP: A facility where persons regularly assemble for religious purposes and related social events, and may include group housing for persons under religious vows or orders. Places of worship may also include ancillary day care facilities and/or classrooms for weekly religious instruction.
PLAN COMMISSION: The plan commission of the Village of Clarendon Hills.
PLAT: A map, chart, and drawings that are appropriate for recording, and indicate the subdivision, consolidation, or resubdivision of land.
PLAYING FIELD: An open outdoor field or court used for, but not limited to, playing sports such as baseball, soccer, football, tennis, volleyball, and basketball.
PORCH: An architectural feature that projects from the exterior wall of a structure, has direct access to the street level of the building, and is covered by a roof or eaves.
PORCH – ENCLOSED: A porch enclosed by walls, screens, lattice or other material. A screened-in porch is an enclosed porch.
PORCH - OPEN: Open porches include porches that are covered by the house's roof structure, have open sides, and are integral to the design of the house. This definition shall not include uncovered decks.
PORCH – UNENCLOSED: A porch that is open on all sides that do not abut a principal building wall.
PORTABLE READER-BOARD SIGN: A sign whose principal supporting structure is intended, by design and construction, to rest upon the ground for support and may be easily moved or relocated for reuse. Portable reader-board signs include, but are not limited to, signs mounted upon a trailer, wheeled carrier, or other non-motorized mobile structure, with wheels or with wheels removed. Portable reader-board signs do not include a-frame signs.
PRINCIPAL BUILDING: A non-accessory building in which a principal use of the lot on which it is located is conducted.
PRINCIPAL USE: The main use of land or structures as distinguished from an accessory use.
PRIVATE CLUBS OR LODGE: A facility operated by an organization or association for a common purpose, such as, but not limited to, a meeting hall for a fraternal or social organization or a union hall, but not including clubs organized primarily for-profit or to render a service which is customarily carried on as a business.
PROPERTY LINE: For the purposes of this Chapter, a property line is a lot line. (See lot line definition.)
PUBLIC IMPROVEMENTS: All improvements for which the City may ultimately assume responsibility for maintenance or operation, or which may affect an improvement for which City responsibility is established. This includes, but is not necessarily limited to, storm drainage, sanitary sewerage and water supply facilities, streets, curbs, gutters, sidewalks, parkways, trees, street lights, street signs, and other accessory works and appurtenances.
PUBLIC INFORMATION/EVENT SIGN: Temporary signs that provide information on a public event or provide public information that contains no commercial advertising except for sponsor names and logos.
PUBLIC SAFETY FACILITY: A facility operated by and for the use of public safety agencies, such as the fire department and the police department, including the dispatch, storage, and maintenance of police and fire vehicles. Public safety facilities include shelter and training facilities for canine units of public safety agencies.
PUBLIC WORKS FACILITY: A facility operated by the municipal or parish public works departments to provide municipal and parish services, including dispatch, storage, and maintenance of municipal vehicles.
PYLON SIGN: A type of ground sign that is affixed, attached, or erected on one or more poles, uprights, or braces from the ground and not supported by a building or a base structure. Pylon signs are any ground signs that do not meet the design and construction standards of this Article for a ground sign. Pylon signs do not include permitted attention getting devices, such as temporary pole signs ground-mounted banners, or other freestanding signs specifically allowed by this Article.
PYLON SIGN
RAIN BARREL: An above ground enclosed structure used for collecting rain water for use at a later time.
RECEPTION/BANQUET FACILITY: A facility that provides hosting and rental services of a banquet hall or similar facilities for private events including, but not limited to, wedding receptions, holiday parties, and fundraisers, with food and beverages that are prepared and served on-site or by a caterer to invited guests during intermittent dates and hours of operation. Live entertainment may be provided as an ancillary use as part of an event. A reception/banquet facility is not operated as a restaurant with regular hours of operation.
RECYCLING CONTAINER: A container used to collect recyclables generated by the use on-site to be transported to a recycling center.
RECREATIONAL VEHICLE: Any vehicle or boat designed for temporary living quarters, recreation, or temporary human habitation and not used as a commercial vehicle including, but not limited to, the following: boat/watercraft, camper trailer, motorized trailer, off-road vehicle, racing car or cycle, travel trailer, and truck camper.
REFUSE DUMPSTER: A container used for collecting solid waste generated by the use on-site. Refuse dumpsters are picked up by a specially equipped truck for transporting the waste materials to the disposal site.
RESEARCH AND DEVELOPMENT: A facility where research and development is conducted in industries that include, but are not limited to, biotechnology, pharmaceuticals, medical instrumentation or supplies, communication, and information technology, electronics and instrumentation, and computer hardware and software. A research and development establishment may create prototypes of products, but may not manufacture products for direct sale and distribution from the premises.
RESIDENTIAL CARE FACILITY: A licensed care facility that provides 24-hour medical or non-medical care of persons in need of personal services, supervision, or assistance essential for sustaining the activities of daily living, or for the protection of the individual. A residential care facility includes nursing homes, assisted living, hospice care, and continuum of care facilities.
RESIDENTIAL SUBDIVISION: A residential neighborhood developed as an integrated whole and typically with a specific identity.
RESIDENTIAL USE: A structure arranged, designed, used, or intended to be used for residential occupancy by one or more families or households, which includes, but is not limited to, the following types: single-family – detached, two-family, townhouse, and multi-family dwellings. Structures with dwellings above ground floor non-residential uses are considered mixed-use development, which are considered a non-residential use for the purposes of this Chapter.
RESTAURANT: An establishment where food and drinks are prepared and sold to the public, typically for on-premises consumption by seated patrons.
RESTAURANT, CARRY-OUT: A food establishment not providing drive-in or curb service, where food is prepared for sale and consumption primarily off the premises, and which devotes less than fifty percent (50%) of the gross floor area of the establishment to seating accommodations for patrons.
RESTAURANT, FAST FOOD: A food service establishment, with or without drive-in, drive-through or curb service, where food is prepared and supplied quickly and easily after ordering and with minimal service in order to be consumed as a quick meal or to be taken out.
RESUBDIVISION: The division of an existing subdivision into additional lots
RETAIL GOODS ESTABLISHMENT: An establishment that provides physical goods, products, or merchandise directly to the consumer, where such goods are typically available for immediate purchase and removal from the premises by the purchaser.
RIGHT-OF-WAY: A strip of land dedicated for use as a public way. In addition to the roadway, it typically incorporates the curbs, parkways, sidewalks, and shoulders.
ROOF SIGN: A sign that is erected, constructed, or maintained on and/or extending above the roof structure or parapet of any building with the principal support attached to the roof structure.
ROOF SIGN
ROOFLINE: The top edge of a roof or building parapet, whichever is higher, excluding any cupolas, pylons, chimneys or minor projections.
SAFETY GLASS: Glass designed to prevent splintering when broken, such as toughened/tempered glass, laminated glass, and wire mesh glass.
SATELLITE DISH ANTENNA: A dish antenna designed for transmitting signals to a receiver or receiving station or for receiving television, radio, data, communication or other signals from other antennas, satellites or other services.
SCHOOL - COLLEGE OR UNIVERSITY: A facility for post-secondary higher learning that grants associate or bachelor degrees. The institution may also have research facilities and/or professional schools that grant master and doctoral degrees. School – College or University includes ancillary uses such as dormitories, cafeterias, restaurants, retail sales, indoor or outdoor recreational facilities, and similar uses.
SCHOOL - PRIMARY OR SECONDARY: A public, private, or parochial facility that offers instruction at the elementary, junior high, and/or high school levels.
SCHOOL - TRADE OR VOCATIONAL: A facility that offers instruction in industrial, clerical, computer, managerial, automotive, repair (electrical, plumbing, carpentry, etc.), or commercial skills, or a business conducted as a commercial enterprise, such as a school for general educational development or driving school. School – Trade or Vocational also applies to privately operated schools that do not offer a complete educational curriculum.
SEARCHLIGHT: An attention-getting device where an artificial light of high intensity is shined upward in a focused beam and can turn in any direction to attract attention to a location. Also known as sky-beams or sky spotlights.
SELF-STORAGE: A facility for the storage of personal property where individual renters control and access individual storage spaces. Ancillary retail sales of related items, such as moving supplies, and facility offices may also be included.
SETBACK: Defined in Section 20.2.4.
SETBACK, BELOW GRADE STRUCTURE: Defined in Section 20.2.4
SETBACK, CORNER SIDE: Defined in Section 20.2.4.
SETBACK, FRONT: Defined in Section 20.2.4.
SETBACK, INTERIOR SIDE: Defined in Section 20.2.4.
SETBACK, REAR: Defined in Section 20.2.4.
SHED: An accessory structure, often purchased pre-built or as a kit in pre-fabricated sections, that is not designed to be served by heat or plumbing and does not need to be placed on a permanent foundation. A shed is typically intended to store lawn, garden, or recreational equipment.
SIGN: A lettered, numbered, symbolic, pictorial, or illuminated visual display designed to identify, announce, direct, or inform that is visible from a public right of way.
SIGN COPY: The elements of a sign that communicate the message including, but not limited to, words, logos, designs, figures, or other symbols that relay the subject matter or message.
SIGNIFICANT NATURAL RESOURCES: Plant and animal species and the area capable of providing habitat for plant and animal species and capable of functioning to support environmental systems, including migratory patterns, and maintain the City's environmental balance: Such resources include, but are not limited to, woodlands, surface and groundwater, soils, drainage systems, wetlands, prairies, and grasslands.
SPECIALTY FOOD SERVICE: A business that specializes in the small quantity production and sale of specific food products, such as a coffee roaster, cheesemonger, candy maker, or meat market, and includes areas for ancillary retail sales and/or restaurants that sell and/or serve the products processed on-site. Specialty food service includes preparation, processing, canning, or packaging of food products where all processing is completely enclosed and there are no outside impacts.
STACKING SPACE: A space specifically designed and designated as a waiting area for vehicles patronizing a drive-through facility or service bay.
STOOP: An exterior floor typically, constructed of stone, concrete, and/or masonry, with a finished floor elevation higher than the adjacent ground level, often with steps leading up to it, and utilized primarily as an access platform to a structure. A stoop may be roofed and designed with railings, but cannot be enclosed.
STREET: A public or private right-of-way that affords a primary means of vehicular access to abutting property, but does not include alleys or driveways.
STREET LIGHTING: One or more luminaires or light installations designed to illuminate a public roadway or intersection.
STREET LINE: The right of way line of a street.
STRUCTURAL ALTERATION: Any change, other than incidental repairs, which would prolong the life of supporting members of a structure, such as the addition, removal, or alteration of bearing walls, columns, beams, girders or foundations.
STRUCTURE: A combination of materials assembled to form a construction for use, occupancy, or ornamentation, whether installed on, above, or below, the surface of land or water.
SUBDIVISION: The division of a lot into two (2) or more lots, the consolidation of two (2) or more lots, or a change in the boundary of one or more lots.
SUSPENDED SIGN: A sign suspended from the underside of the horizontal plane surface of an awning, canopy, cantilever, marquee, arcade, or gallery. Under-awning signs are distinct from blade signs, which are attached to the structure.
SUSPENDED SIGN
TEMPORARY CONTRACTOR'S OFFICE: A temporary structure utilized as a watchman's quarters, construction office, equipment shed, or sales center during the construction of a new development.
TEMPORARY MOBILE FOOD SALES: A mobile food establishment where food preparation and service is housed in a truck or trailer or a non-motorized mobile food cart.
TEMPORARY OUTDOOR ENTERTAINMENT: A temporary live entertainment event, such as the performance of live music, revue, or play within an outdoor space. Temporary outdoor entertainment event includes fireworks shows, horse shows, carnivals/circuses, temporary worship services, and others.
TEMPORARY OUTDOOR SALES: Temporary uses, which may include temporary structures, where goods are sold, such as consignment auctions, arts and crafts fairs, flea markets, rummage sales, temporary vehicle sales, and holiday sales, such as Christmas tree lots and pumpkin sales lots. This temporary use category does not include outdoor sales related to a retail goods establishment where such goods are part of the establishment's regular items offered for purchase.
TEMPORARY USE: A use established for a set period of time, with the intent to discontinue such use upon the expiration of such time, that does not involve the construction of any permanent structure(s).
TOWNHOUSE: A dwelling within a row of two (2) or more adjoining dwelling units, separated from the others by one or more unpierced walls extending from ground to roof.
TRAILER: Any trailer, travel trailer, camping trailer, motorized home, or portable vehicle on wheels, skids, rollers, or blocks, either self-propelled or transportable by any other means, which is used for living, sleeping, storage, or commercial purposes.
TRANSITIONAL YARD: A yard which is on a lot in a nonresidential district which abuts a yard in a residential district, or a yard in a multi-family district which abuts an R-1 single-family district, which requires traditional landscape buffering.
UNDEVELOPED LAND: Land where infrastructure has not been installed and that has not been built on. Undeveloped land does not include land in agricultural use.
UNIFIED CONTROL: The combination of two (2) or more tracts of land wherein each owner has agreed that his tract of land will be developed under the same development approvals.
USE: The purpose or activity for which the land or structure is designed, arranged, or intended, or for which it is occupied or maintained.
UTILITY: All lines and facilities related to the provision, distribution, collection, transmission, or disposal of water, storm and sanitary sewage, oil, gas, power, information, telecommunication, and telephone cable, including facilities for the generation of electricity.
UTILITY, PRIVATE: Utilities that are not subject to City acceptance for operation or maintenance.
UTILITY, PUBLIC: Any person, firm, corporation, municipal department, or board duly authorized to furnish, and furnishing under state or municipal regulations to the public, electricity, gas, steam, communication, telegraph, transportation, or water.
VEHICLE DEALERSHIP: An establishment that sells or leases new or used automobiles, vans, motorcycles, and/or all-terrain vehicles (ATV) vehicles, or other similar motorized transportation vehicles. A motor vehicle dealership may maintain an inventory of the vehicles for sale or lease either on-site or at a nearby location, and may provide on-site facilities for the repair and service of the vehicles sold or leased by the dealership. Vehicle dealerships do not include truck, trailer, boat, or heavy equipment sales, which are considered heavy retail, rental, and service.
VEHICLE OPERATIONS FACILITY: A facility for the dispatch, storage, and maintenance of emergency medical care vehicles, taxicabs and similar vehicles for hire, school buses, utility vehicles, and similar vehicles. Vehicle operations facility does not include a public works or public safety facility.
VEHICLE RENTAL AGENCY: An establishment that rents automobiles and vans, including incidental parking and servicing of rental vehicles. A motor vehicle rental establishment may maintain an inventory of the vehicles for sale or lease either on-site or at a nearby location, and may provide on-site facilities for the repair and service of the vehicles sold or leased by the dealership. Vehicle rental does not include truck rental establishments or rental of heavy equipment, which is considered part of heavy retail, rental, and service.
VEHICLE REPAIR: A business that provides repair services to motor vehicles, motorcycles, and all-terrain vehicles (ATV) vehicles.
VIDEO DISPLAY SIGN: A sign, or portion of a sign, that displays an electronic video, whether pre-recorded or streaming.
VILLAGE: That area within the village limits of Clarendon Hills.
VILLAGE BOARD: The board of trustees of the village of Clarendon Hills.
VILLAGE MANAGER: The village manager of the village of Clarendon Hills or designee.
WALL: A constructed solid barrier of concrete, stone, brick, tile, or similar type of material that closes, marks, or borders a field, yard, or lot, and that limits visibility and restricts the flow of air and light.
WALL SIGN: A sign that is attached directly to an exterior wall of a building or dependent upon a building for support and projects eighteen inches (18") or less from the wall of a structure with the exposed face of the sign in a plane substantially parallel to the face of the wall. Window signs are not considered wall signs.
WALL SIGN
WAREHOUSE: An enclosed facility for the storage and distribution of manufactured products, supplies, and/or equipment.
WHITE ROOF: A roof designed to deliver high solar reflectance, reducing heat transfer to the building and the ability to radiate absorbed, or non-reflected solar energy.
WHOLESALE: A business where goods are sold to either retailers, or to industrial, commercial, institutional, or other professional business users, or to other wholesalers and related subordinated services.
WIND TURBINE: A device that converts the wind's kinetic energy into electrical energy. Also called a wind energy converter.
WINDOW SIGN: A sign that is attached to, placed upon, or printed on the interior or exterior of a window or door of a building, or displayed on the interior within two feet (2’) of a window intended for viewing from the exterior of such a building. A window sign may be either permanent or temporary. Shadowbox design within display windows, where the window display is designed with a background enclosure against which signs are mounted that blocks view into the establishment, is considered a window sign and the entire area of the shadowbox is subject to the maximum sign area limitation.
WINDOW SIGN
YARD: Defined in Section 20.2.4.
YARD, CORNER SIDE: Defined in Section 20.2.4.
YARD, FRONT: Defined in Section 20.2.4.
YARD, INTERIOR SIDE: Defined in Section 20.2.4.
YARD, REAR: Defined in Section 20.2.4.
ZONING ADMINISTRATOR: The Community Development Director of the Village of Clarendon Hills, or designee, assigned the duties and responsibilities of zoning enforcement and administration.
ZONING BOARD: The Zoning Board of Appeals/Plan Commission (ZBA/PC) of the Village of Clarendon Hills.
ZONING LOT: A lot or combination of lots within a single block, which is designated by its owner or developer to be used, developed, or built upon as a unit. A zoning lot may or may not coincide with a lot of record.
ZONING LOT LINE: A property line forming the front, side or rear boundary of a zoning lot.
ZONING MAP: The map or maps that are a part of this Chapter and which delineate the boundaries of all mapped zoning districts within the physical boundary of the Village.
(Ord. 19-10-26; amd. Ord. 22-10-22)
This section provides the rules of measurement for the dimensional standards and locational characteristics within this Chapter.
(Ord. 19-10-26)