APPENDICES
The IH-35E Corridor Overlay District is defined as all land located within the area bounded by the following: Beginning at the southwest corner of the intersection of North Stemmons Freeway (IH-35E) and North Garden Ridge Boulevard, running westerly along the south right-of-way line of North Garden Ridge Boulevard to the northwest corner of a 3.221-acre tract of land out of the F. Pierce Survey, Abstract No. 1016 conveyed to IH-35 & Garden Ridge Acquisitions, LP, then southerly and easterly along the western and southern boundaries of said IH-35 & Garden Ridge Acquisitions, LP tract to the west right-of-way line of North Stemmons Freeway, (IH-35E), then southerly along the west right-of-way line of North Stemmons Freeway (IH-35E) and crossing Bogard Lane to the southeast corner of the intersection of Bogard Lane and McGee Lane, then southerly along the east right-of-way line of McGee Lane to the northeast corner of the intersection of McGee Lane and the KCS Railroad, then easterly along the north right-of-way line of the KCS Railroad to the northeast corner of the intersection of the KCS Railroad and North Summit Avenue, then southerly along the east right-of-way line of North Summit Avenue to the northwest corner of Lot 1, Block H, Valley Ridge Residential Addition, then easterly along the north boundaries of Lot 1, Block H, Valley Ridge Residential Addition and Lot 3, Block I, Valley Ridge Business Park West Phase 9 to the west right-of-way line of North Stemmons Freeway (IH-35E), then southerly along the east boundary and westerly along the south boundary of Lot 3, Block I, Valley Ridge Business Park West Phase 9, then westerly along the south boundary of Lot 1, Block H, Valley Ridge Residential Addition to the north right-of-way line of College Parkway, then crossing the right-of-way College Parkway in a southwesterly direction to the eastern corner of Lot 1, Block A, Parkway Estates Addition, then in a southwesterly direction along the eastern and southern boundaries of Lot 1, Block A, Parkway Estates Addition to the southeast corner of a drainage right-of-way dedicated on the final plat of Fireside Village Addition, then westward along the southern boundary of said drainage right-of-way to the eastern right-of-way line of North Summit Avenue, then southward along the east right-of-way line of North Summit Avenue crossing West Main Street and continuing southerly along the east right-of-way line of Surf Street to the southwest corner of Lot 3, Block B, Harbor Heights, then eastward along the south boundary of Lot 3, Block B, Harbor Heights to the southeast corner of said lot, then northward along the east boundary of Lots 3, 2, and 1 A, Block B, Harbor Heights to the southwest corner of Lot 6 (PT), Valley Square, then easterly along the south boundary of Lots 6 (PT), 3 and 2, Valley Square to a point being the intersection of the south boundary of Lot 2, Valley Square and the northward extension of the western boundary of Lot 5, Block G, Quailcrest, then south across the public alley to the northwest corner of Lot 5, Block G, Quailcrest and continuing southerly along the west boundaries of Lots 5, 4B, 3, 2 and 1, Block G, Quailcrest to the north right-of-way line of West Purnell Street, then east along the north right-of-way line of West Purnell Street to the west right-of-way line of South Stemmons Freeway (IH-35E), then southeasterly along the west right-of-way line of South Stemmons Freeway (IH-35E) to the northwest corner of a 0.9759-acre tract of land out of the J. Sutton Survey, Abstract No. 1155 conveyed to Neville Texas Investments, LLC, then south along the west boundary of said Neville Texas Investments LLC tract and continuing south along the west boundary of a 4.0839-acre tract and an 8.141-acre tract, both out of the J. Sutton Survey, Abstract No. 1155 conveyed to AVB Ltd, to the north right-of-way line of Fox Avenue, then in a southeasterly direction across the Fox Avenue right-of-way to the northwest corner of Lot 1, Block A, Fox Haven Addition, then south and easterly along the west boundary and south boundary of Lot 1, Block A, Fox Haven Addition to the west boundary of Lot 6R, Block A, Fox-IH35E Addition, then southeasterly, east, and northeasterly along the west, south and southeast boundaries of Lot 6R, Block A, Fox-IH35E Addition to the west right-of-way line of South Stemmons Freeway (IH-35E), then southeasterly along the west right-of-way line of South Stemmons Freeway (IH-35E) to the north-most corner of Lot 3 (PT), Block A, Lakeland Plaza Addition, then southwesterly and southerly along the northwest and west boundaries of Lots 3 (PT) and 1 (PT), Block A, Lakeland Plaza Addition to the northwest corner of Lot 1, Block A, Peppermint Addition, then south along the west boundary of Lot 1, Block A, Peppermint Addition to the north right-of-way line of Oakwood Lane, then easterly, southerly and easterly along the north, east and north right-of-way lines (following curves) of Oakwood Lane to the east right-of-way line of SH 121 Business, then south along the east right-of-way line of SH 121 Business to the southwest corner of Lot 1, Block A, Rider Addition, then east along the south boundaries of Lot 1, Block A, Rider Addition and Lot 1R, Block A, Bankston Nissan Addition to the west boundary of Lot 1, Block A, Lewisville Mitsubishi Addition, then south along the west boundaries of Lot 1, Block A, Lewisville Mitsubishi Addition and Lot 1, Block A, Toyota of Lewisville to the southwest corner of Lot 1, Block A, Toyota of Lewisville, then east along the south boundary of Lot 1, Block A, Toyota of Lewisville to the northwest corner of Lot 1 A, Block C, Timber Creek Square Phase I, then south along the west boundary of Lot 1 A, Block C, Timber Creek Square Phase I to the northeast right-of-way line of East Southwest Parkway, then southeasterly along the northeast right-of-way line of East Southwest Parkway to the south right-of-way line of East Corporate Drive, then southwesterly along the south right-of-way line of East Corporate Drive to the north most corner of Lot 2, Block C, Timber Creek Square Phase 2, then southeasterly along the northeast boundary of Lot 2, Block C, Timber Creek Square Phase 2 to the northwest corner of Lot 6, Block A, Vista Ridge Pointe Addition, then south along the west boundaries of Lot 6, Block A, Vista Ridge Pointe Addition and Lots 2 and 1A, Block B, Vista Ridge Village Addition Phase 3 to the north right-of-way line of Oakbend Drive, then in a southeasterly direction across the Oakbend Drive right-of-way to the northwest corner of Lot 1, Block A, Oakbend and Rockbrook Addition, then south and east along the west and south boundaries of Lot 1, Block A, Oakbend and Rockbrook Addition to the west boundary of Lot 4, Block A, Vista Ridge Village Addition Phase 2, then south along the west boundaries of Lots 4, 3 and 2, Block A, Vista Ridge Village Addition Phase 2 to the north right-of-way of East Round Grove (FM 3040), then east along the north right-of-way line of Round Grove Road (FM 3040) to the east right-of-way line of Mac Arthur Boulevard, then southerly along the east right-of-way line of MacArthur Boulevard to the north right-of-way line of SH 121, then easterly along the north right-of-way line of SH 121 to the east right-of-way line of Lake Vista Drive, then southerly and easterly along the east and north right-of-way line of Lake Vista Drive to the south most corner of Lot 1RA, Block L, Vista Ridge to the southwest corner of a 38.0408-acre tract of land out of the McKinney-Williams Survey, Abstract No. 936 conveyed to Dallas Gun Club, then east along the south boundary of said Dallas Gun Club tract and following the City of Lewisville corporate limit line along the south boundary of a 2.2-acre tract of land out of the McKinney-Williams Survey, Abstract No. 936 and conveyed to Denton County Levee Improvement District No. 1 and continuing east and following the City of Lewisville corporate limit line along the south boundary of said Dallas Gun Club tract and continuing east following the City of Lewisville corporate limit line along the south boundary of a 5.8-acre tract of land out of the McKinney-Williams Survey, Abstract No. 936 conveyed to Denton County Levee Improvement District No. 1 and continuing east following the City of Lewisville corporate limit line along the south boundary of a 38.0408-acre tract of land out of the McKinney-Williams Survey, Abstract No. 936 conveyed to Dallas Gun Club to the west most southwest corner of Lot 6R, Block A, I-35 Boat City Addition, then east, south, easterly, northerly, west and north (following curves) along the south, west, south, east, north and east boundaries of Lot 6R, Block A, I-35 Boat City Addition to south corner of Lot 5, Block A, I-35 Boat City Addition, then northeasterly along the southeastern boundary of Lot 5, Block A, I-35 Boat City Addition to the west right-of-way line of South Stemmons Freeway (I-35E), then following the City of Lewisville corporate limit line northeasterly across the South Stemmons Freeway (IH-35E) right-of-way to the east right-of-way line of South Stemmons Freeway (IH-35E) then following the City of Lewisville corporate limit line northwesterly to the southeast corner of a 14.029-acre tract of land out of the McKinney-Williams Survey, Abstract No. 936 conveyed to City of Carrollton, then northwesterly and east following the City of Lewisville corporate limit line along the southwest, west and north boundaries of said City of Carrollton tract to the west boundary of 109.6-acre tract of land out of the J. Chowning Survey, Abstract No. 242 conveyed to City of Carrollton, then north following the City of Lewisville corporate limit line along the west boundary of said City of Carrollton tract to the west right-of-way line of the Dallas Area Rapid Transit (DART) railway, then northerly along the west right-of-way line of the Dallas Area Rapid Transit (DART) railway, crossing the SH 121 right-of-way, to the north right-of-way line of SH 121, then southwesterly along the north right-of-way line of SH 121 to the southeast corner of Lot 4 (PT), Block A, Arthur James Addition, then northwesterly along the northeastern boundary of Lots 4 (PT), 3 and 2, Block A, Arthur James Addition to the east right-of-way line of Arthur's Lane, then northwesterly across the Arthur's Lane right-of-way to northeast corner of Lot 8R, Block H, Lakepointe Phase 5, then northwesterly along the northeast boundary of Lots 8R, 7B (PT) and 7A (PT), Block H, Lakepointe Phase 5 to the southeast corner of Lot 3, Block H, Lakepointe Phase 1, then northwesterly and northeasterly along the southwest and northwest boundaries of Lot 3, Block H, Lakepointe Phase 1 to the northmost corner of Lot 3, Block H, Lakepointe Phase 1, then in a northeasterly direction across Lot 3, Block G, Lakepointe Phase 3 to the southeast corner of Lot 2R-1, Block G, Lakepointe Phase 3, then northeasterly along the southeast boundaries of Lots 2R-1 and 1 R-1 B, Block G, Lakepointe Phase 3 and continuing in a straight line across the right-of-way of Lakeside Circle to the north right-of-way line of Lakeside Circle, then northwesterly along the north right-of-way line of Lakeside Circle to the south corner of Lot 1R-2A, Block E, Lakepointe Phase 3, then northeasterly along the southeast boundaries of Lots 1R-2A and 1R-3, Block E, Lakepointe Phase 3 and Lots 1, 2R1, 3R1 and 4, Block A, Hebron Lakepointe Addition to the south right-of-way line of Hebron Parkway, then crossing the right-of-way of Hebron Parkway to the east corner of Lots 3B and 3C, Block D, Lakepointe Phase 3, then northwesterly and southwesterly along the northeast boundary of Lots 3B and 3C, Block D, Lakepointe, Phase 3 and the northeast and northwest boundaries of Lots 3A (E PT) and 3A (W PT), Block D, Lakepointe Phase 3 to the northeast right-of-way line of Lakepointe Drive, then crossing the right-of-way of Lakepointe Drive to the southwest right-of-way line of Lakepointe Drive, then northwesterly along the southwest right-of-way line of Lakepointe Drive to the south corner of the intersection of Lakepointe Drive and Waters Ridge Drive, then southwesterly along the southeast right-of-way line of Waters Ridge Drive to the west corner of Lot 7, Block A, Lakepointe West, then northwesterly across the right-of-way Waters Ridge Drive to the south corner of Lot 4A, Block B, Lakepointe Phase 2, then northwesterly, west and north along the southwest, south, and west boundaries of Lot 4A, Block B, Lakepointe Phase 2 to the south right-of-way line of Lakepointe Drive, then northwesterly along the south and west right-of-way line of Lakepointe Drive and crossing East Corporate Drive and continuing northwesterly along the southwest right-of-way line of Lakepointe Drive to a point being the intersection of the south right-of-way line of Lakepointe Drive and the southerly extension of the west boundary of Lot 5, Block A, Xerox Facility Addition, then north across the right-of-way of Lakepointe Drive to the southwest corner of Lot 5, Block A, Xerox Facility Addition, then north along the west boundary of Lot 5, Block A, Xerox Facility Addition to the south right-of-way line of Bennett Lane, then northeasterly across the Bennett Lane right-of-way to the southeast corner of a 0.963-acre tract of land out of the E. Aday Survey, Abstract No. 11 conveyed to City of Lewisville, then north to the northeast corner of said City of Lewisville tract then west along the north boundaries of said City of Lewisville tract; and continuing west, north and west along the north boundaries of a 1.926-acre tract of land out of the E. Aday Survey, Abstract No. 11 conveyed to City of Lewisville; Lot 1, Block A, Bennett Park Center; Lot 1, Block A, Octavi Hernandez Addition; a 0.75-acre tract of land out of the E. Aday Survey, Abstract No. 11 conveyed to Noblitt Living Trust; Lot 1, Block A, Tyson Estates; a 0.959-acre tract of land out of the E. Aday Survey, Abstract No. 11 conveyed to E&H Contractors; a 3.0-acre tract of land out of the E. Aday Survey, Abstract No. 11 conveyed to Rafael Corona; and a 3.027-acre tract of out of the E. Aday Survey, Abstract No. 11 conveyed to Nancy A. Stevens; to the east right-of-way line of Yates Street, then northerly along the east right-of-way line of Yates Street to the northwest corner of Lot 1, Block A, WRN Creekside Development Addition, then east, north and west along the south, east and north boundaries of a 57.3366-acre tract of land out of the J.W. King Survey, Abstract No. 695 conveyed to AMC Northwood, LLC, to the southwest corner of Lot 2, Block A, DCTA Maintenance Facility Addition, then north and east along the west and north boundaries of Lot 2, Block A, DCTA Maintenance Facility Addition to the southeast corner of 3R, Block A, Zander Place Addition, then north and northwesterly along the east and northeast boundaries of Lot 3R, Block A, Zander Place Addition to the southeast right-of-way line of SH 121 Business, then continuing in a straight line northwest across the SH 121 Business right-of-way to the northwest right-of-way line of SH 121 Business, then southwesterly along the northwest right-of-way line of SH 121 Business to the west corner of the intersection of SH 121 Business and McKenzie Street rights-of-way, then west along the south right-of-way line of McKenzie Street to the northeast corner of Lot 7, Block 10, McKenzie-Hembry Addition, then southerly, westerly and southerly along the east boundary of Lot 7, Block 10, McKenzie-Hembry Addition to the northeast corner of a 1.45-acre tract of land out of the J.W. King Survey, Abstract No. 695 conveyed to City of Lewisville, then southwesterly along the southeast boundaries of said City of Lewisville tract to the north-most corner of a 2.44-acre tract of land out of the J.W. King Survey, Abstract No. 695 conveyed to City of Lewisville, then southeasterly, southwesterly, westerly and northwesterly along the northeast, southeast, south and southwest boundaries of said City of Lewisville tract to the east right-of-way line of South Mill Street, then north along the east right-of-way line of South Mill Street to the northeast corner of South Mill Street and Mesquite Street, then westerly across the South Mill Street right-of-way to the northeast corner of a 0.482-acre tract of land out of the E. Pickett Survey, Abstract No. 1014 conveyed to Lebz Brothers Inv. LLC, then west and south along the north and west boundaries of said Lebz Brothers Inv. LLC tract to the north right-of-way line of Yale Avenue, then southerly across the Yale Avenue right-of-way to the northwest corner of Lot 17, Block A, Termin, then south along the west boundaries of Lot 17, Block A, Termin and continuing southerly along the west boundary of a 0.45-acre tract of land out of the E. Pickett Survey, Abstract No. 1014 conveyed to Reid M. Anderson to the north right-of-way line of Harvard Avenue, then south across the Harvard Avenue right-of-way to the northwest corner of a 0.441-acre tract of land out of the E. Pickett Survey, Abstract No. 1014 conveyed to Bruce Properties LLC, then south along the west boundary of said Bruce Properties LLC tract to the north boundary of Lot 1, Block A, Batterton Addition, then west along the north boundaries of Lot 1, Block A, Batterton Addition and continuing west along the north boundaries of Lot 2, Block B, Huffines Dodge Addition, and a 3.7969-acre tract of land out of the E. Pickett Survey, Abstract No. 1014 conveyed to 1090 St. Charles Property, LLC, to the east right-of-way line of South Charles Street, then west across the South Charles Street right-of-way to the west right-of-way line of South Charles Street, then south along the west right-of-way line of South Charles Street to the north corner of a 0.711-acre tract of land out of the E. Pickett Survey, Abstract No. 1014 conveyed to Michael & Hiyasmin Noyes, then southwesterly along the northwest boundary of said Noyes tract to the east corner of Lot 9, Block B, Lakeland Terrace 1, then northwesterly along the northeast boundary of Lot 9, Block B, Lakeland Terrace 1 to the north corner of Lot 9, Block B, Lakeland Terrace 1, then northwesterly across the Lake Shore Drive right-of-way to the west right-of-way line of Lake Shore Drive, then north along the west right-of-way line of Lake Shore Drive to the southwest corner of Lake Shore Drive and Harbor Drive, then westerly, northwesterly and northerly along the south, southwest and west right-of-way line of Harbor Drive to the southwest corner of Harbor Drive and Lake Haven Drive, then north across the Lake Haven Drive right-of-way to the north right-of-way line of Lake Haven Drive, then northwesterly along the northeast right-of-way line of Lake Haven Drive to the east corner of Lake Haven Drive and Fox Avenue, then north-easterly across the right-of-way of Fox Avenue to the southeast corner of Lot 9, Block 4, James Degan, then westerly along the south boundaries of Lots 9, 8, 7, 6, 5, 4, 3 and 2 (PT), Block 4 James Degan to the northeast right-of-way line of South Stemmons Freeway (IH-35E), then northwesterly along the northeast right-of-way line of South Stemmons Freeway (IH-35E) to the northeast corner of South Stemmons Freeway (IH-35E) and West Purnell Street, then east along the north right-of-way line of West Purnell Street to the northwest corner of West Purnell Street and South Edna Avenue, then north along the west right-of-way line of South Edna Avenue to the southwest corner of South Edna Avenue and West Main Street, then north across the West Main Street right-of-way to the north right-of-way line of West Main Street, then west along the north right-of-way line of West Main Street to the northwest corner of West Main Street and Degan Avenue, then north along the west right-of-way line of Degan Avenue to the northwest corner of Degan Avenue and West College Street, then west along the north right-of-way line of West College Street to the northwest corner of Harn Drive, then north along the west right-of-way line of Harn Drive to the southwest corner of Harn Drive and Millican Drive, then north across the Millican Drive right-of-way to the north right-of-way line of Millican Drive, then east along the north right-of-way line of Millican Drive to the southwest corner of Lot 18, Block E, Lewisville Park Estates, then north along the west boundaries of Lots 18, 17, 16, 15, 14, 13, 12, 11, 10, 9, 8, 7, 6, 5, 4, 3, 2 and 1, Block E and Lots 1-5, Block A Lewisville Park Estates to the northwest corner of Lot 5, Block A, Lewisville Park Estates, then east along the north boundaries of Lots 5-12, Block A, Lewisville Park Estates to the northeast corner of Lot 12, Block A, Lewisville Park Estates, then northeasterly across two drainage right-of-way lots to the southeast corner of Lot 3A, Block A, Valley Ridge Business Park East, then north along the east boundary of Lot 3A, Block A, Valley Ridge Business Park East to the northeast corner of Lot 3A, Block A, Valley Ridge Business Park East, then northwesterly across the Valley Ridge Boulevard right-of-way to the southeast corner of Lot 3, Block B, Valley Ridge Business Park East, then north along the east boundary of Lot 3, Block B, Valley Ridge Business Park East to the northeast corner of Lot 3, Block B, Valley Ridge Business Park East, then westerly along the south right-of-way line of the KCS railway to east corner of Lot 1, Block A, May Trailer Sales Addition, then northwesterly across the KCS Railway right-of-way to the southeast corner of Lot 3, Block A, Butler Addition, then north along the east boundaries of Lot 3, Block A, Butler Addition and Lot 1, Block A, Denton County Addition to the south right-of-way line of West Jones Street, then northerly across the West Jones Street right-of-way to the southeast corner of Lot 2R1, Block A, Fairway Business Park, then north along the east boundary and west along the north boundary of Lot 2R1, Block A, Fairway Business Park to the east boundary of Lot 1, Block A, Phil Dill Jr Addition, then north along the east boundaries of Lot 1, Block A, Phil Dill Jr Addition and Lot 2, Block A Lewisville Boat Storage Addition (PT) to the southwest right-of-way line of the Dallas Area Rapid Transit (DART) railway, then northwesterly along the southwest Dallas Area Rapid Transit (DART) railway right-of-way line to the northwest corner of Lot 2, Block A, Franklin Street Addition, then northeasterly across the Dallas Area Rapid Transit (DART) railway right-of-way to the southeast corner of Lot 1, Block A, CB Green Addition, then north along the east boundary of Lot 1, Block A, CB Green Addition to the south right-of-way line of Lake Park Road, then north across the Lake Park Road right-of-way to the north right-of-way line of Lake Park Road, then west along the north right-of-way line of Lake Park Road to the southeast corner of a 3.2258-acre tract of land out of the P.K. Waggoner Survey, Abstract No. 1342 conveyed to the James C. Holmes Family Trust, then north along the east boundary of said James C. Holmes Family Trust tract to southeast corner of Lot 2, Block A, Callmark Addition, then north and westerly along the east and north boundaries of Lot 2, Block A, Callmark Addition and continuing westerly along the north boundary of Lot 1, Block A, Callmark Addition to the east right-of-way line of Oakridge Boulevard, then northwesterly across the Oakridge Boulevard right-of-way to the west right-of-way line of Oakridge Boulevard, then south along the west right-of-way line of Oakridge Boulevard to the northeast corner of Lot 30A, Block A, Oakridge Park Estates Section G, then northwest, west and south along the northeast, north and west boundaries of Lot 30A, Block A, Oakridge Park Estates Section G to the northeast right-of-way line of the Dallas Area Rapid Transit (DART) railway, then crossing the Dallas Area Rapid Transit (DART) railway right-of-way in a southwesterly direction and continuing northwesterly along the southwest right-of-way line of the Dallas Area Rapid Transit (DART) railway to the southwest corner of the Dallas Area Rapid Transit (DART) railway right-of-way and North Garden Ridge Boulevard, then westerly across the North Stemmons Freeway (IH-35E) right-of-way to the point of beginning.
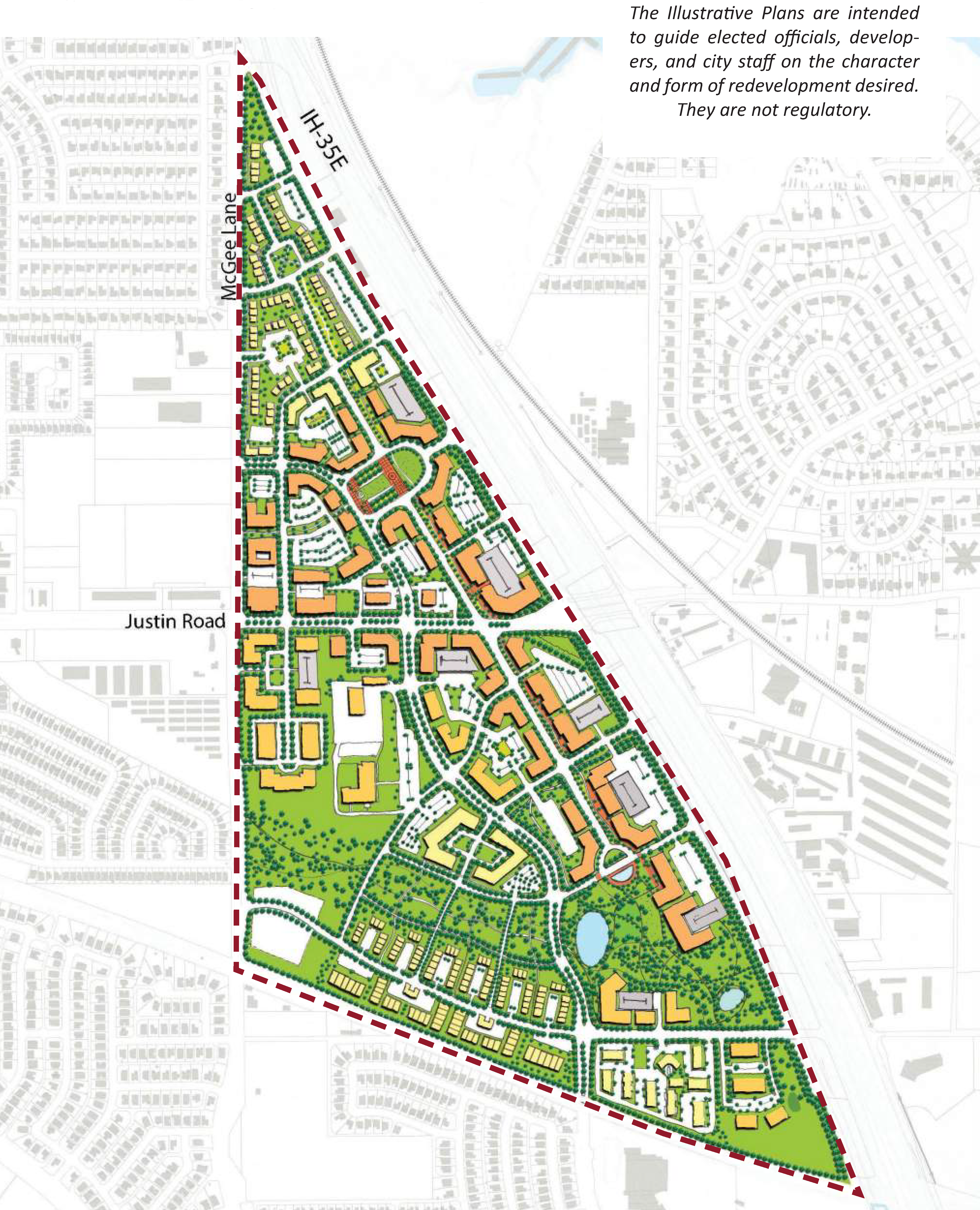
City of Lewisville IH-35E Corridor Redevelopment Plan - Appendix
The following corridor character principles are intended to provide a thematic vision for public infrastructure along the corridor and its subareas. This Section is organized to present intent statements for spatial elements contained within the corridor, followed by design principles for each of the character subareas. The principles should be used to provide guidance during the decision-making process when evaluating detailed concepts for proposed treatments within the corridor.
These principles were used in the development of the IH-35E Corridor Identity Plan, which adopted the three (3) character zone designations and determined the appropriate limits for each within the corridor. The physical design elements for the corridor were then developed in terms of the aesthetic character which was then applied to typical interchange locations along the corridor. A vocabulary of common elements was established for the entire corridor, including lighting, banner poles, wayfinding, plantings, cross street gateway identifiers, pedestrian protection barriers, decorative crosswalk pavement and bridge abutment wall treatments. Unique character zone defining elements were developed for pedestrian paving patterns, custom retaining wall graphics, pedestrian protection wall forms and textures, and planting palette.
The Corridor Experience
The eight-mile drive along the IH-35E corridor through Lewisville provides a range of experiences that can be interpreted in the physical design of the spatial elements throughout the corridor. This corridor contains modulation through topography, compression of the right-of-way in areas where the highway is depressed, and openness as the highway crests to expansive views of the region. On a smaller scale, the corridor passes under bridges which will serve as landmarks, and along a variety of walled conditions. Through the journey, the corridor also passes along watercourses and open spaces that are amenities to local neighborhoods. These experiences provide inspiration that can inform the design of elements at the scale of the entire corridor and at smaller neighborhood scales.
Unifying Character Theme
One of the most impressive natural resources along this corridor is Lake Lewisville. The lake is a psychological and physical place of respite and recreation, and is a regional attraction in the Dallas metropolitan area. During work sessions with the project's Advisory Committee, the lake was identified as the most recognizable asset to the City and the theme of water was proposed as a unifying theme for the corridor. The purpose of providing a unifying theme is to provide a consistent brand for the City and to inform drivers of the range of experiences and opportunities contained in this corridor.
Subarea Character Themes
Due to the length of the corridor, the range of experiences it offers, and the character of its adjacent communities, subarea themes are proposed for the north, central and south portions of the corridor. Subarea themes will help to break down scale of the corridor and provide neighborhood identification.
North-Water
Water should be a defining characteristic in the north section and used as a unifying
theme.
The subarea themes for the north section of the corridor are water and recreation. Combined with the vacant parcels available for redevelopment along the corridor, the water theme could serve as an organizing element for future development. Lifestyle oriented development could reflect the unique attributes of living, working and recreating around water. The design elements along this northern reach need to come together to draw visitors off the highway thereby capturing greater market share.
•
Gateways and landmarks should be focused at Garden Ridge Boulevard and Valley Ridge Boulevard, both primary entrances into the Lake area. Higher density nodal development should be focused around these gateways to draw in visitors.
•
Water should be a defining characteristic in the treatment of walls, bridges, lighting and art. Species such as Sun Fish and Large Mouth Bass could be utilized as relief along retaining walls to remind visitors of the Lake Lewisville recreational amenity.
Central-Urban
The central section of the corridor is tied to Old Town Lewisville
The theme of the Central section of the corridor ties to historic Old Town Lewisville. Though located approximately one mile from the center of Old Town, IH-35E currently has little relationship to Old Town and the medical uses in between. Design elements should be consistent with the historic architecture of Old Town.
•
Gateways and landmarks need to be located at both South Mill Street and West Main Street to signify entrance into the historic heart of the community, tying newer land uses along the highway with the history of Old Town.
•
Design treatments for walls, bridges, lighting, building architecture and art should emphasize the area's history. Brick and warm materials need to reflect the historic nature of Old Town.
South-Park
Hebron Parkway could benefit from a gateway in the southern section.
The southern section of the IH-35E corridor will remain an important center of retail, hospitality and corporate office space. The theme for this area should focus on its location as a gateway and destination, and capitalize on its unique assets, such as Timber Creek.
•
A gateway is needed at Hebron Parkway to distinguish this area as a center of activity and connectivity between uses east and west of the highway. This bridge could exhibit a unique architectural style, such as an arched truss bridge. Tall lighted elements along this bridge could denote this as a special area, and create a nighttime place, while preserving views north and south during the day.
•
Due to the complexity of the intersection of SH-121 to allow for all necessary vehicle movements, this area will contain a high percentage of retaining walls. Special attention will be required to reduce the impact of the walls through a variety of surface treatments, including massing breaks, color changes, and texture variations. Additional surface treatments could include the incorporation of public art to display shallow relief images with colored material.
Unifying character theme spatial elements
The experience and character of the corridor will be communicated through the design and treatment of its spatial elements. Following are design principles for the primary spatial elements that will be experienced throughout the corridor. Each of the spatial elements described below should be designed to complement the unifying theme and respective subarea themes along the IH-35E corridor.
Each spatial element is defined below. Intent statements describe how each element is characterized in the corridor. Principles are included that should be incorporated in the design of each element.
A.
Landmarks and gateways take the form of natural features and design elements and include bridges, intersection treatments, development form, and significant open space areas.
Intents:
•
Landmarks identify and brand the City of Lewisville and its neighborhoods.
•
Landmarks form a mental map for wayfinding purposes and can be created through natural or manmade means.
•
Gateways identify particular areas within the City or particular neighborhoods.
Principles:
A1.
To achieve a consistent treatment where gateways are provided, gateways should be designed as elements that either span across a highway or path, or are symmetrical treatments located on each side of the highway right-of-way or path, and require users to either pass under or pass through.
A2.
To promote the diversity that exists in Lewisville, landmark locations are identified within the primary catalysts of Subareas 2, 5 and 7.
A3.
To diversify community image, landmark and gateway treatments should contain a minimum of three (3) exterior materials.
A4.
To promote visual clarity, gateway treatments should be a minimum of eight feet (8') tall at any dimension from the ground or base condition.
A5.
To incorporate nodal development, landmarks and gateway treatments should be integrated with intersection design at identified nodes.
B.
Development Patterns describe how buildings, roads and open space are organized together in a particular area. These patterns contribute significantly to the character of the highway.
Intents:
•
Development is composed of compact centers, or nodes, of mixed use development.
•
Environments are designed to be comfortable to pedestrians and bicyclists.
•
Networks of transportation modes interconnect development and open space.
•
Land use and transportation are intricately linked to create active, engaging places.
Principles:
B1.
To reduce sprawl, create development nodes that capture a higher number of vehicle trips accessing the corridor than traditional development.
B2.
To promote active places, create centers of mixed-use developments near a variety of residential densities.
B3.
To promote active places, site design for major projects should allow for increased densities over time.
B4.
To reduce the occurrence of strip development, new development should be nodal in character and concentrate development along the highway at planned areas that are separated by open space.
B5.
To leverage transportation access, the tallest and densest development patterns should occur within 700 feet to one-quarter mile radius of planned nodes. Most nodes are situated at interchanges.
B6.
To improve development character, parking locations should be less prominent and located to the rear of buildings or in parking structures.
B7.
To promote active streets, pedestrian-oriented uses should be located on ground floors of buildings.
B8.
To facilitate more active places, sidewalks should be wider in planned development nodes than in other lower density areas.
B9.
To provide amenities for pedestrians, sidewalks should incorporate street trees, benches, kiosks and plazas.
B10.
To promote active streets, auto-oriented uses, including service stations and drive through facilities should be discouraged within one-quarter mile radius of planned nodes.
B11.
To provide a pedestrian-friendly street network, street block sizes should not exceed 600,000 square feet.
C.
Right-of-way treatments include bridges, walls, fencing, landscaping and lighting.
Intents:
•
Right-of-way treatments embody the unifying and subarea themes described in this plan.
•
Aesthetic treatments are visibly consistent for public and private lands when viewed from the corridor.
Principles:
C1.
To improve aesthetic quality, bridges should contain a minimum of three (3) exterior materials, and include accent lighting in addition to standard lighting for safety.
C2.
To improve aesthetic quality, no chain link fencing is allowed within direct view of the corridor or fifty feet (50') outside the state owned right-of-way.
C3.
To improve the aesthetic quality, fencing treatments should incorporate live, drought-tolerant vegetation, where direct transparency for safety is not required.
C4.
To improve the aesthetic quality, landscape treatments, including flowering plants should be provided adjacent to identified gateways and landmark areas.
C5.
To reduce a canyon effect in the corridor, vertical surfaces of walls should not exceed twenty feet (20') without a twelve-inch (12") minimum horizontal break.
C6.
To break down the scale of walls, patterns should be created that are a maximum of four feet (4') in any direction.
C7.
To promote a pedestrian-oriented environment, pedestrian routes should be buffered from fast-moving traffic and expanses of parking.
D.
Natural Spaces along the highway are primarily passive in form, and include open space, pedestrian pathways, waterways, wetlands and stormwater drainage areas.
Intents:
•
Natural spaces complement and separate areas of nodal development and enhance the natural surroundings.
•
Natural spaces represent interconnected systems and are organized to facilitate system-wide drainage.
•
View corridors provide expansive views out of the corridor and identify landmarks when appropriate.
Principles:
D1.
To facilitate pedestrian connectivity, natural spaces should create linear systems, particularly east-west along the corridor.
D2.
To maintain a sustainable landscape, only native plantings should be provided.
D3.
To promote expansive views, low plantings should be provided in open spaces designated to frame long views.
D4.
To improve water quality, native landscape materials should be utilized to provide primary filtration of stormwater prior to entering sewers.
E.
Access locations include the locations of curb cuts and intersections on frontage roads, arterial streets and intersections within the corridor.
Intents:
•
Frontage roads facilitate local circulation parallel to the highway and provide access to the local street system.
•
Local streets provide the majority of access to private property along the corridor.
Principles:
E1.
To promote access, street patterns should form an interconnected grid that simplifies access for all transportation modes.
E2.
To improve multi-modal circulation, bridges should include pedestrian paths and bicycle lanes.
E3.
To increase capacity of the frontage road system, curb cuts should be minimized.
F.
Nighttime treatments include the organization and design of safety lighting and accent lighting on spatial elements, including landmarks, key building and landscape treatments, bridge and wall treatments and open spaces.
Intents:
•
Corridor treatments should be designed for daytime and nighttime users.
•
Effect lighting attempts to replicate the daytime experience for nighttime users.
•
Lighting for safety is integrated with effect lighting and provides a consistent design theme.
Principles:
F1.
To improve the aesthetic quality, accent lighting should be included in right-of-way treatments.
F2.
To express the design theme in each subarea, safety lighting should be incorporated with effect lighting.
F3.
To promote walking during nighttime, pedestrian scaled lighting should be included on all walkways with one-quarter mile of defined nodes.
G.
Street design includes both traffic and pedestrian zones.
Intents:
•
The traffic zone encompasses vehicular and bicycle movements, and can also include medians, crosswalks and on-street parking.
•
The pedestrian zone includes all elements from the back of curb.
Principles: Traffic Zone
G1.
Vehicular lane width will vary based on the street type and traffic volume. On highways such as IH-35E, 12-foot lanes may be most appropriate. Arterials with heavier volumes of traffic may require 11- to 12-foot lanes. On local streets, 10- to 11-foot lanes are encouraged to help reduce speed and narrow the overall traffic zone width.
G2.
Bicycles may be accommodated either through a wider outside lane or through a striped bicycle lane. Bicycle lane widths should be between four (4) and six (6) feet. When placed adjacent to on-street parking, an additional one (1) to two (2) feet of bicycle lane should be provided.
G3.
Medians should provide refuge areas for pedestrians and include special planting, paving treatments, or public art installations at each end to create a visual amenity.
G4.
Crosswalks should include inset materials or textures, including brick pavers or stamped concrete which provides visual amenity and functional traffic calming for intersections.
G5.
On-street parking is typically eight (8) to ten (10) feet wide allowing for parallel parking adjacent to the vehicular lane. On-street parking is typically placed on corridors with lower speed limits and streets with active pedestrian and development to help calm traffic and serve surrounding land uses.
Principles: Pedestrian Zone
G6.
Sidewalks on frontage roads and arterial streets are encouraged to be detached from the curb and setback from the street a minimum of eight feet (8'). Sidewalk widths should be a minimum of six feet (6') and can exceed twelve (12') feet depending on planned pedestrian activity. Sidewalks on local streets should be a minimum of six feet (6') and either be attached or detached depending on other amenities provided.
G7.
Curb cuts should be subject to conditions specified by an access management strategy for arterial roads. Curb cuts are only encouraged at combined business entries and for parcels that cannot be accessed from a local road. Curb cuts on all streets should be designed to be as narrow as possible while providing for safe traffic movements and access.
G8.
Street trees are encouraged within the amenity zone. The trunk should be setback from the street a minimum of three feet (3') to provide a clear area from the street and to allow the canopy to mature.
G9.
Planter boxes can be located in the amenity area and provide a buffer along busy streets and create a more intimate pedestrian space. Planters can be seasonal or permanent.
G10.
Lighting along sidewalks should be provided to indicate safe pedestrian pathways. Pedestrian scale lighting can be incorporated with traffic lighting poles or provided as independent elements.
G11.
Benches/seating on arterials should be provided at bus stops and near intersections in green areas to provide an amenity for people waiting to cross the street or board transit. Additionally, seating is encouraged in green areas with access to public open space, or large parking areas.
G12.
Bus stops should provide overhead shelter from sun, snow and rain and provide side shelter from wind and rain. Side panels should provide a high degree of transparency and be clear of visual obstructions.
G13.
Bicycle racks along streets should be provided adjacent to active streets containing neighborhood serving businesses. When provided, racks should be located in the amenity zone.
City of Lewisville IH-35E Corridor Redevelopment Plan - Appendix

Great places are defined in large part by great streets. Jane Jacobs said it well:
"Streets and their sidewalks, the main public places of a City, are its most vital
organs."
These design guidelines are intended to enable the City to work together with the development and business communities in achieving the vision for IH-35E corridor. That vision includes four framework themes:
•
Revitalizing the corridor will require enhancing the established character through multiple public and private realm improvements.
•
Establishing memorable destinations will require creating authentic and diverse public places, while expanding the range of attractions and economic development opportunities that the corridor offers.
•
Integrating the neighborhoods will require a mix of infill housing and services for local neighbors.
•
Achieving a more accessible corridor will require improving the transportation system to minimize barriers and provide regional transportation alternatives.
The design guidelines are divided into two types: guidelines and standards. The Guidelines contained in this document are general statements describing ideal development along the corridor. The standards are basic requirements for any development or redevelopment along the IH-35E corridor. The use of these two types of statements is intended to give flexibility to the developer and/or applicant to respond and contribute to the corridor vision in advance of a submittal, to give the City of Lewisville a basis on which to make judgments so that its determinations are not arbitrary, and to give certainty to the City of Lewisville and its citizens that the corridor vision is met and that the quality described is maintained. The images in this Section reflect examples from across the country, which exemplify the written standards.
As time passes and the City and its partners in the public and private sector advance in achieving the corridor vision, conditions along the corridor will change. The standards will be added to and amended over time. The guidelines and standards serve as a tool to ensure that the corridor vision and quality of corridor redevelopment remains consistently high.
Authority
These Guidelines shall be approved as part of the IH-35E Corridor Redevelopment Plan according to the provisions of the General Development Ordinance.
Applicability and Review
The review process follows the approved development process as stipulated in the City of Lewisville's adopted General Development Ordinance (GDO). The required standards of the corridor design guidelines and standards are in addition to the specific requirements of the GDO. These guidelines and standards supersede all other city design guidelines except as noted.
A design review committee (DRC) should be established by the City for review of projects along the IH-35E corridor. This committee should be responsible for the controls governing the design guidelines and standards. This DRC should have the responsibility to review all development within the boundaries of the corridor overlay area. Review of engineering requirements such as drainage; utilities; police, fire, and emergency service access is the responsibility of city staff. The DRC would have the responsibility of reviewing all design outside of the right-of-way, while city staff has the responsibility to review the street's engineering, traffic functions, utility and public safety requirements. The DRC should be composed of both public and private individuals. Representatives of the private development community bring value in providing their perspective.
Amendments
These Guidelines may only be amended by City Council with a recommendation from the Planning Commission.
Format
The format of the following design guidelines consists of development conditions defined by design principle statements and design standards. Development conditions are described for Site Plan, Architecture, Landscape, and Signage. Guidelines describe the design intent for each listed condition and should be incorporated into design treatments of each listed condition. Standards describe the specific treatments that, if incorporated, require no further DRC review. However, if standards cannot be achieved due to outstanding conditions, the DRC may evaluate specific condition proposed treatments against the stated Guidelines. If the DRC approves the proposed treatments no further DRC review is required. Appeals may be made to the Planning Commission.
A.
SITE PLAN
A1.
Building orientation
Guidelines
A1.g1.
The front facades and main entries of buildings should be oriented toward streets and plazas.
A1.g2.
Building orientation should provide views of adjoining publicly accessible streets and open spaces in order to provide passive viewing for safety.
A1.g3.
Pedestrian activity should be encouraged through the incorporation of active uses such as retail, commercial and/or institutional uses at the ground level.
A1.g4.
Buildings should define the street or public open space.
A1.g5.
Buildings should be located to promote sun and sky exposure to public streets and plazas.
A1.g6.
Buildings should be sited to create active outdoor spaces where possible, such as outdoor restaurant seating where appropriate.
Standards
A1.s1.
Buildings shall line a street at the Right-of-Way or the build-to line to the greatest extent possible.
A1.s2.
Buildings shall use the full width of the lot for the primary structure and/or active outdoor space.
A2.
Access and driveways
Guidelines
A2.g1.
Access points, including alleys, and driveways should be located to promote the safe and efficient movement of vehicles, pedestrians and bicyclists.
A2.g2.
Uninterrupted pedestrian-ways should be maximized in order to improve walkability.
A2.g3.
The width of driveways and curb cuts should be minimized to reduce the overall impact of vehicular access across a sidewalk.
A2.g4.
Driveways and ramps to underground parking should be perpendicular or generally perpendicular to the street.
A2.g5.
Block frontages should have as few curb cuts as possible.
A2.g6.
Sharing of vehicle entries between two adjacent lots is strongly encouraged.
Standards
A2.s1.
Developments shall provide access for service vehicles via alleys or parking lots.
A3.
Parking lot and structure location
Guidelines
A3.g1.
Buildings should be located to minimize the visual impact of parked vehicles within lots and structures.
A3.g2.
Parking lot location should minimize the impact of parked vehicles on the continuity of active commercial, mixed use, and/or residential frontages.
A3.g3.
Parking lots and structures should be located to minimize the impact of vehicle noise and headlights from within parking lots and structures onto adjacent residential neighborhoods.
A3.g4.
Whenever possible, parking structures should be sited internally to the block so that parking structure street frontages are avoided. If internal siting is not feasible, then the parking structure should be oriented so that the shortest dimension fronts the street.
A3.g5.
If it is only feasible to orient the long dimension of a parking structure along a street, then the structure's street facade should exhibit the same high level of quality in its design, detailing and use of material as is provided in the adjoining commercial and/or mixed use buildings.
A3.g6.
Parking structures that are sited with exposed street frontage should orient the exposed frontage to commercial activities, rather than residential uses.
Standards
A3.s1.
Surface parking areas shall be located at the side or rear of buildings only.
A3.s2.
Parking structures with exposed street frontage shall not be oriented toward residential uses.
A4.
Utility location and screening
Guidelines
A4.g1.
Service areas and utility pedestals should be located to minimize the visual impact of service areas, refuse storage and mechanical/electrical equipment on streets, public open spaces and adjoining development.
A4.g2.
Utility appurtenances should be located behind the sidewalk and out of the sidewalk amenity zone wherever possible. Where it must be in the tree lawn or amenity zone, such equipment should be centered on the tree line and aligned with but no closer than 42 inches from the face of curb. This includes switch boxes, telephone pedestals, transformers, meters, irrigation, and similar equipment.
A4.g3.
The use of alleys is encouraged to locate all mechanical, electrical, and utility equipment to the extent possible.
Standards
A4.s1.
Service areas and refuse storage areas shall not front onto streets and public open spaces. Such areas shall be located to the rear or side of buildings, and screened from view from the street and/or public open space.
A4.s2.
Refuse storage and pick-up areas shall be combined with other service and loading areas.
Utility screening
A5.
Pedestrian access
Guidelines
A5.g1.
Pedestrian entries to buildings should promote security on a street or public open space through frequent points of access and sources of activity.
A5.g2.
In general, ground floor uses with exterior exposure should each have an individual public entry directly located on a public sidewalk along a street, or on a sidewalk or plaza leading directly to a street.
Standards
A5.s1.
Primary building entrances shall be oriented toward streets, parks or pedestrian plazas.
A5.s2.
Each block face shall have multiple building entries. A building occupying an entire city block shall include more than one building entrance along each block face.
A5.s3.
All secondary building entries shall be well lit and directly connected to the street.
B.
Architecture
B1.
Building Character
Guidelines
B1.g1.
Building character should be creative and within a visually comfortable and familiar environment.
B1.g2.
Buildings should be designed to provide human scale, interest, and variety while maintaining an overall sense of relationship with adjoining or nearby buildings.
B1.g3.
Art integrated into building facades or forms, and/or specially designed architectural ornament is encouraged.
Standards
B1.s1.
All buildings shall be designed specifically for the context and character of the corridor. 'Iconic' corporate standard building design is encouraged at identified gateway and landmark locations.
B1.s2.
The majority of the building(s) of a development shall possess an architectural character that respects traditional design principles, such as:
•
Variation in the building form such as recessed or projecting bays;
•
Expression of architectural or structural modules and detail;
•
Diversity of window size, shape or patterns that relate to interior functions;
•
Emphasis of building entries through projecting or recessed forms, detail, color or materials;
•
Variations of material, modules, expressed joints and details, surface relief, color, and texture to scale;
•
Tighter, more frequent rhythm of column/bay spacing, subdividing the building façade into smaller, more human scaled elements.
B2.
Building Form
Guidelines
B2.g1.
New development should create occasional special building forms that terminate views, create a unique skyline, and aid in way-finding.
B2.g2.
Building form should emphasize important components of a building, such as an entry, or a special internal space.
B2.g3.
Lower building heights or upper level stepbacks are encouraged on the south or east side of the street or public open space in order to provide more sun penetration to the ground level.
B2.g4.
Taller buildings adjacent to lower buildings shall establish scale relationships with lower, neighboring buildings through methods such as: compatible horizontal alignment of architectural features and fenestration, and height and form transitions from one building to another.
Standard
B2.s1.
Building form shall employ a uniform level of quality on all sides of the building.
B3.
Building Facade
Guidelines
B3.g1.
Building facades should be designed to provide human scale and detail and to avoid large areas of undifferentiated or blank facades.
B3.g2.
Each building facade oriented to the street or public space should provide architectural variety and scale through the use of such elements as: expressions of building structure; patterns of window, door or other openings that provide surface variation through change of plane, change in color; change in texture; change in material module or pattern; art or ornament integral with the building.
B3.g3.
Primary building facades should include some elements that provide a change in plane that create interest through the interplay of light and shadow. Examples of such elements are:
•
recessed windows, at least 3 inches;
•
recessed entries and doors;
•
projecting sills;
•
recessed or projecting balconies;
•
projecting pilasters, columns, bays;
•
projecting cornices, roofs.
B3.g4.
Each 'base' should be composed of the first floor or first two floors of the building.
B3.g5.
Each 'base' in its entirety should be designed to give the appearance of greater height than any single floor of the middle.
B3.g6.
Each 'base' should have a greater level of transparency than the 'middle' or 'top.'
B3.g7.
The architectural treatment of the 'top' should be designed to create a sense of distinctly completing the dominant architectural theme of the 'middle' of the building. This architectural completion may be accomplished by such strategies as: change in the window rhythm, change in apparent floor height, setback, use of other materials, or a combination of these elements.
B3.g8.
Distinctive corner, entry treatments and other architectural features designed to interact with contextual features may be designed differently than the 'base', 'middle', and 'top.' This difference would allow the addition of vertical emphasis at significant architectural points along the building facade.
B3.g9.
The 'top' of buildings above four (4) stories may have a 'cap' set back above the lower stories, which is distinctive in shape and smaller than the previous floor.
Standards
B3.s1.
The building facade shall generally have three vertical divisions: 'bases,' 'middles,' and 'tops.' In buildings of three stories or less in height, the 'top' may be comprised of an ornamental 'cap' or cornice rather than the articulation of an entire floor of habitable space.
B3.s2.
The design of 'roofscape' elements of tall buildings shall relate directly to the building walls.
B3.s3.
Building design shall create varied roof parapet and cornice lines in order to create interesting and human scaled skylines.
B4.
Building transparency
Guidelines
B4.g1.
Where functionally appropriate, the ground floor, street-facing facade shall be made of transparent materials designed to allow pedestrians to view activities inside the buildings, retail goods for sale, or display lighted windows related to these activities.
B4.g2.
When transparency is not functionally appropriate, other means should be used to provide activity along the street-facing façade such as public art; architectural ornament or detailing; or material, texture, or color patterns.
B4.g3.
Buildings should incorporate a window or glazing-to-wall ratio that is sufficient to establish the visual solidity of the building form.
B4.g4.
Reflective glass should be used sparingly, if at all, to reduce glare, reduce the opacity or 'blankness' of the facade. Coated or tinted glass may be considered to reduce heat gain, particularly on west and south facades.
B4.g5.
Windows or glazing on upper levels should be sufficiently transparent to provide an awareness of internal activities when viewed from the street or public spaces.
Standards
B4.s1.
Glass without coatings or tints shall be used for all retail glazing. In no case shall highly reflective glass be used.
B5.
Building Entries
Guidelines
B5.g1.
For mixed-use buildings with residential units, one or more separate building entrances from the sidewalk should be used to provide access to the residential units.
B5.g2.
Detailed and elaborate entries should be used as another way to create street level interest and architectural variety.
B5.g3.
Major building entries should be emphasized through such design devices as changes in plane, differentiation in material and/or color, greater level of detail, enhanced lighting, ornament, art, and/or building graphics.
B5.g4.
Primary building entries should be oversized, and generally break the storefront/ground floor façade pattern.
Standard
B5.s1.
Each multi-story building shall have one clearly identifiable 'front door' that addresses the street. In addition to this 'front door,' a building occupying an entire city block shall include at least one other building entrance along each block face.
B6.
Building Materials
Guidelines
B6.g1.
New development should use materials and colors that possess a comfortable and familiar character, convey a sense of quality and attention to detail, and are compatible with materials of adjacent buildings.
B6.g2.
New development should use lasting materials that weather well, need little maintenance, and resist vandalism.
B6.g3.
Materials and/or detailing at retail frontages should distinguish between the structural parts of a building (columns, walls and beams), and the infill parts of a building (wall panels, frames, windows and doors).
B6.g4.
Infill materials should have a non-structural appearance.
Standards
B6.s1.
A significant portion of the facade facing a street or public open space (not including windows, doors and their framing systems), shall be composed of highly durable materials such as: brick, stone, cast stone, specially treated concrete masonry units, terra-cotta, and/or glass. All building materials shall be integrally tinted.
B6.s2.
Building materials shall maintain a uniform level of quality on all sides of the building.
B7.
Parking Structures
Guidelines
B7.g1.
The exterior of parking structures should be wrapped with mixed-use space in order to minimize the visual impact of parking on the pedestrian experience, and the street environment and to increase pedestrian activity and interest along the street by locating active uses at the street level of parking garages
B7.g2.
Garage facades visible from public streets and open spaces should be compatible in character and quality with adjoining buildings.
B7.g3.
Parking structures should create visually interesting facades that provide human scale and detail while avoiding large areas of undifferentiated or blank facades.
B7.g4.
Openings should be vertically and horizontally aligned.
Standards
B7.s1.
Street oriented facades shall conceal or effectively reduce the impact of parked cars and light sources from the exterior view for the full height of the structure.
B7.s2.
Multi-story parking structures (3 levels or more) with facades facing public streets shall provide commercial, live-work, residential and/or institutional space for not less than 50 percent of the garage's ground level street facing frontage, or the design and structure of the ground floor street frontage should be able to accommodate in the future one of the above listed uses.
B7.s3.
Sloping ramps shall not be visible within the street facade of any parking structure.
B8.
Building Lighting
Guidelines
B8.g1.
Building lighting should accentuate important architectural components of the building, such as entries, towers or roof elements, or repetitive columns or bays, and include decorative lighting.
B8.g2.
Building lighting should provide indirect or direct lighting for adjoining sidewalks and open spaces.
B8.g3.
Primary building entries should be externally lit so as to promote a more secure environment at the door, emphasize the primary point of entry into the building, and provide sufficient lighting for efficient access into the building.
B8.g4.
Steps and/or ramps at or leading to a primary building entry should be illuminated sufficiently for safe access.
Standard
B8.s1.
Entry lighting shall complement the building's architecture. Standard security lighting such as wallpacks shall not be allowed.
B9.
Rooftop design
Guidelines
B9.g1.
Rooftop design should maintain the integrity of architecturally designed building tops and help create interesting and varied skylines.
B9.g2.
In mixed use development, if residential uses are located near mechanical equipment, care should be taken to mitigate the impacts of noise and odors.
B9.g3.
Antennae that extend over five feet above the roof line are encouraged to have screening techniques applied such as color and material to minimize visibility.
B9.g4.
Streetscape within the corridor area should not be cluttered by utility elements.
B9.g5.
Utility boxes should be located so that they do not obstruct pedestrian traffic or block sight lines at intersections.
Standards
B9.s1.
All roof mounted mechanical and electrical equipment, communication antennae or dishes shall be enclosed, screened, organized, designed and/or located as part of the architectural expression and shall not be visible from the public right-of-way. Any equipment shall be covered or screened to its full height.
B9.s2.
Switch boxes, transformers, electrical and gas meters, and other above ground utility elements shall be screened or located out of view from the street.
C.
LANDSCAPE
C1.
Perimeter Landscaping
Guidelines
C1.g1.
Perimeter landscaping design should create street and plaza spaces that join buildings, uses, pedestrian areas, and streets into a unified urban place.
C1.g2.
Perimeter landscaping should reinforce the pedestrian environment established in the adjoining street right-of-way.
C1.g3.
Perimeter landscaping should be designed to provide seamless transitions between buildings, uses, and open spaces that promote the mixing of commercial, residential, and institutional uses.
C1.g4.
Where a landscape perimeter area occurs between a building frontage and a street right-of-way, it should be designed to extend the pedestrian amenities of the street, such as increased walkway widths, areas for outdoor café/restaurant seating, increased sidewalk widths to allow window shopping out of the stream of pedestrian traffic, and space for the temporary display of a retailer's goods.
C1.g5.
Where space permits, planting in containers, raised planters, or cutouts in the paving is encouraged.
Standard
C1.s1.
Where a side setback landscape perimeter area occurs, it shall be designed to contribute to a pedestrian amenity zone such as a passageway, or contribute to a paved driveway or alley.
C2.
Internal courtyards, plazas and open spaces
Guidelines
C2.g1.
Internal courtyards, plazas, or open spaces should be designed to create useable open spaces, suitable for passive recreational activities such as informal play, reading, and sitting in the sun or shade.
C2.g2.
All open spaces accessible to the general public should be open a minimum of 12 hours per day.
C2.g3.
Private open space may be fenced with wrought iron, masonry or comparable decorative fencing or otherwise controlled for security.
Standard
C2.s1.
All public and private open space not used for recreation shall be attractively landscaped with plant material and hard surfaces.
C3.
Hardscape Design
Guidelines
C3.g1.
Hardscape design should provide a quality of paving materials and patterns consistent with the quality of the surrounding architecture and open spaces and provide safe paving conditions for all persons.
C3.g2.
Hardscape design should create interest and variation within paved surfaces that includes but is not limited to public art, coloring, or materials.
C3.g3.
Special paving should be carefully chosen for structural capability and durability in the local climate. Uncolored concrete, colored concrete, brick, hydraulically pressed concrete unit pavers or stone is recommended.
C3.g4.
Special paving patterns and materials should be used to emphasize important building entries, provide interest and variation, and differentiate between sidewalks, plazas, medians, and crosswalks.
Standards
C3.s1.
Sidewalks shall be separated or buffered from vehicle travel lanes by street/pedestrian lights, and/or street trees in grates or in a tree lawn.
C3.s2.
In transition areas, sidewalks shall be separated from the street by trees in tree lawns.
C4.
Landscape: Trees and Plant Materials
Guidelines
C4.g1.
Landscaping should create a strong identity for each street and use quality plant materials that are located, sized, and provided in quantities sufficient to emphasize important streets.
C4.g2.
Landscaping should use plant materials that tolerate an urban condition.
C4.g3.
Trees should align parallel and perpendicularly across the street with each other whenever possible.
C4.g4.
Ornamental trees should not be used in a street right-of-way.
C4.g5.
Tree grates or planting cut-outs should be used in paved areas to prevent excessive soil compaction.
C4.g6.
Large tree pits that allow for a broader canopy are preferred over typical street trees.
C4.g7.
All tree lawns and street trees in cut-outs, tree pits, and grates should be irrigated with an automatic irrigation system. Drought tolerant turf or low, continuous ground covers should be used as the primary ground cover for continuous tree lawns.
C4.g8.
To the maximum extent feasible, topsoil that is removed during construction activity should be conserved for later use on areas requiring revegetation and landscaping.
Standards
C4.s1.
No artificial trees, shrubs, turf, or plants shall be used to fulfill the minimum requirements for landscaping.
C4.s2.
Tree lawns shall be a minimum of 6 feet in width, measured from the back of curb to the edge of the sidewalk.
C4.s3.
Street trees shall be centered within the width of the tree lawn.
C4.s4.
Street trees in tree grates shall be at least 2 feet 6 inches from the face of the curb. Tree grates shall be at least 24 square feet with openings no more than ¼ inch to ⅜ inch in width and should be designed to allow for tree trunk growth.
C5.
Street and Pedestrian Lighting
Guidelines
C5.g1.
Lighting should provide a safe and secure environment for motorists, bicyclists, and pedestrians.
C5.g2.
Lighting should create an identity for the development and/or special streets.
C5.g3.
Lighting should enhance the quality of streets in the commercial core through the design of the light poles, bases, fixtures, and attachments.
C5.g4.
Street and/or pedestrian light poles should be aligned with and centered between street trees.
C5.g5.
Where the light source is directly visible, the luminaries should be designed to incorporate elements to reduce glare, such as translucent, internal refracting surfaces to direct light down and away from adjoining private property; lower height poles; lower wattage or pole location.
Standards
None in this Section.
C6.
Street Furniture
Guidelines
C6.g1.
Seating should be durable, comfortable, attractive, securely anchored, and easy to maintain. Seating surfaces should be 16 to 18 inches high with a minimum depth of 16 inches for seats without backs and 14 inches for seats with backs.
C6.g2.
Where bus stops occur within tree lawns, a minimum of one 6-foot long bench should be placed on a concrete pad. Where a bus stop occurs on a wide attached sidewalk, a 6-foot long bench should be provided within the sidewalk's amenity zone.
C6.g3.
Trash receptacles should be conveniently located near benches and other activity nodes.
C6.g4.
Trash receptacles should relate in appearance and color to other street furniture. They should be firmly attached to paving to avoid vandalism. Covered tops and sealed bottoms should be included to keep the contents dry and out of sight at all times.
C6.g5.
Bicycle racks should be placed near entrances or gathering places, but out of pedestrian and bicycle traffic areas where they may create tripping or other safety hazards. If possible, locate racks where parked bicycles are visible from the inside of adjacent buildings.
C6.g6.
Newspaper racks and trash receptacles should be located at areas where high pedestrian activity is anticipated.
C6.g7.
Newspaper boxes should be clustered together and screened by specially designed railings. They should be located adjacent to pedestrian activity, but not so as to obstruct drivers' views at intersections, or car overhang/door swings at the curb.
Standards
None in this Section.
C7.
Wayfinding Elements
Guidelines
C7.g1.
Wayfinding should compliment and enrich the pedestrian experience and create interesting streets and spaces.
C7.g2.
Wayfinding information should be conveyed clearly and efficiently with high quality sign and graphic design.
C7.g3.
Information should be provided for events on-site as well as within the City.
C7.g4.
To provide art, whimsy and contrast to the civic structure of the street furnishings, wayfinding elements should relate to local culture and flavor.
C7.g5.
Information kiosks and wayfinding elements should be located near pedestrian origin points such as parking structure stairs and elevators, public plazas and near entrances to public buildings.
Standards
None in this Section
C8.
Gateway Elements and Public Art
Guidelines
C8.g1.
Public art should engage the community, and express community identity.
C8.g2.
Art should create experiences for the senses and opportunities for surprise, wonder, interest, contemplation, reflection, humor, interaction and play.
C8.g3.
Art should provide shade structures at appropriate locations, particularly on the north side of the street.
C8.g4.
Commissioned works should exhibit superior craftsmanship and design, and be fabricated of durable, low maintenance materials using proven technologies. A range of signature pieces should include integrated urban design elements, architectural detailing and interactive features.
C8.g5.
Art should be sited to create areas of emphasis within the urban fabric while supporting the social function of each space.
C8.g6.
Selected artworks should include interactive elements allowing residents and visitors to walk through, play, sit on, and otherwise physically interact with the finished work.
C8.g7.
Artwork, where appropriate, should be integrated into infrastructure and site furnishings (i.e., hardscape/landscape elements, building facades, tree grates, wayfinding devices, seating, etc.).
Standards
C8.s1.
All plaza areas shall include public art.
C8.s2.
Artwork shall be designed and sited to correlate with surrounding activity patterns.
D.
Signage
D1.
General Criteria
Guidelines
D1.g1.
Signs should be located, sized, and designed for single or multiple uses so as to eliminate conflicts, predict the impact and effects of the signs on adjoining properties, avoid clutter and achieve the desired character of their application.
D1.g2.
In an effort to limit the variety of sign types used on a single building along the corridor, the following combinations should be considered:
•
One (1) wall sign per use; window signs limited to ten (10) percent of any window area; one (1) monument sign per building frontage, but awning signs, pole signs, or projecting signs are discouraged in this combination.
º
Window signs limited to 20 percent of the window area, awning signs, and one (1) projecting sign per use, but wall signs, pole signs, or monument signs are discouraged in this combination.
º
One (1) wall sign per use, one (1) projecting sign per use if located or designed so as not to visually conflict, window signs limited to 10 percent of any window area, but awning signs, pole signs, or monument signs are discouraged in this combination.
Standards
D1.s1.
Rehabilitated buildings shall provide a sign plan showing locations, sizes, heights, and probable design and illumination of all sign types to be used on the building or its site.
D2.
General Number and Location of Signs
Guidelines
D2.g1.
Signs should be limited in number commensurate with the needs of the uses in the building.
D2.g2.
Signs should respect the architectural character and design of the building in their number and location.
D2.g3.
Sign clutter, where the number and size of signs dominate the storefront or façade of the building, should be avoided.
Standards
D2.s1.
Wall, window, awning, and projecting signs shall not be allowed above the ground floor with the exception of the following with the discretion of the design review committee:
•
Painted, face-lit wall signs;
•
Internally lit channel letter signs and/or logos;
•
Painted wall murals with a minor component for the identification of a business;
•
One unlit window sign per business;
•
The extension of a ground floor projecting sign;
•
The name of the building integrated into the material and/or design of the facade; In no case shall an internally lighted, cabinet type wall sign be allowed above the ground floor.
D2.s2.
Signs shall not be located within the residential portion of the facade of any mixed use building.
D2.s3.
A maximum combination of three sign types shall be used for any building frontage. Such sign types are: wall, projecting, ground, window, awning, marquee and arcade.
Wall sign
Window sign
D3.
General Size and Height
Guidelines
D3.g1.
The size of signs should be related to the location and speed of movement of the typical person viewing the sign.
Standards
None in this Section.
D4.
General Design and Illumination
Guidelines
D4.g1.
Signs should respect the architectural character and design of the building.
D4.g2.
Signs should be expressive of the activity, product, or use for which they are displayed.
D3.g3.
Signs should be compatible with existing residential uses.
Standards
D4.s1.
Materials for signs shall compliment the color, material and overall character of the architecture.
D4.s2.
Signs shall be constructed of high quality, durable materials. All materials must be finished to withstand corrosion. All mechanical fasteners shall be of hot-dipped galvanized steel, stainless steel, aluminum, brass or bronze.
D4.s3.
All conduits, transformers, and other equipment shall be concealed, and shall have UL ratings.
D4.s4.
Exterior lighting of signs shall be oriented down onto the face of the sign, not up from below to minimize night sky light pollution.
D4.s5.
Sign illumination shall not create objectionable glare to pedestrians, motorists, and adjoining residents.
D4.s6.
A business's corporate logo or typical sign design may be allowed by the design review committee. However, the design review committee shall retain complete control over the design, dimensions, location, number and type of the sign.
D4.s7.
Hand painted signs shall not be allowed, unless painted by a sign contractor specializing in hand painted or hand crafted signs.
D4.s8.
Sign illumination shall be integrated into the design of the sign. Signs may be externally lit so long as the external lighting has been conceived and controlled as part of the sign design.
D4.s9.
Internally illuminated sign cabinets, either for wall or projecting signs, shall not have white or light colored back-lit translucent face panels.
Signs compliment color, material and character of architecture
D5.
Wall Signs
Guidelines
D5.g1.
Wall signs should be integrated with the architecture of the building.
D5.g2.
In general, wall mounted sign cabinets should be discouraged.
Standards
D5.s1.
Wall signs shall be located within any sign areas clearly designed for signs on existing or proposed building facades.
D5.s2.
Lighted wall signs shall not be located at the top of a building's facade if the facade is higher than two stories and shall not directly face a residential neighborhood.
D5.s3.
Maximum wall sign size shall not be increased by an increase in sign height.
D5.s4.
No more than one wall sign shall be allowed per building.
D5.s5.
Wall signs shall not overlap, or generally conflict with important architectural features such as windows, cornices, belt courses, or other details.
D5.s6.
Wall signs located on the side wall of a building that faces a side property line, alley, or parking area (including a side property line along a street), shall not be lighted above the ground floor.
D5.s7.
Wall signs shall be composed of individually mounted letters, logos or icons without sign backing panels, or letters/logos mounted on a backing panel.
D5.s8.
Phone/Fax numbers on all signs, with the exception of window signs, shall not be allowed.
D5.s9.
Neon signs, except those located in a window, shall not be allowed.
D6.
Projecting Signs
Guidelines
D6.g1.
Projecting signs should not be closer than 50 feet apart, and no more than three for 300 feet of street frontage.
Standards
D6.s1.
Each use by right shall be limited to one projecting sign for each of that use's street frontage.
D6.s2.
Projecting signs shall not be located above the ground floor.
D6.s3.
All projecting sign structures on a building shall be located at the same height as the other sign structures.
D6.s4.
Projecting signs shall be located above or below non-signed awnings, but not in line with the awnings.
D6.s5.
Projecting signs shall not be greater in size than 12 square feet per face or 24 square feet per sign.
D6.s6.
Projecting signs shall be externally lit. Internally lit sign cabinets are generally discouraged except where the sign face is composed of metal with back lit cut out letters or logos.
Appropriately scaled lighting and signage
D7.
Ground Signs
Guidelines
D7.g1.
Ground signs should be refined, creative and unique.
D7.g2.
'Designed' pole or post signs are encouraged when the vertical supports are integrated into the design of the sign.
D7.g3.
The design of a joint identification sign should be unified, uncluttered, easily readable, and of high quality. Ways to avoid a cluttered appearance are:
•
The sign text for most components is composed of the same type face and size.
•
The sign structure or frame is dominant enough or simple enough to visually organize varied components.
•
The sign has a clear hierarchy or importance in its components.
Standards
D7.s1.
Only one monument or per street frontage sign shall be allowed per building. The monument sign may also be a joint identification sign.
D7.s2.
Ground signs shall have no more than one sign cabinet or backing panel.
D7.s3.
If lighted, monument signs should be externally lit with a shielded or directed light source.
Desirable ground sign
D8.
Window Signs
Guidelines
D8.g1.
Window signs should emphasize a window's transparency and sense of openness to the interior.
D8.g1.
Window signs should avoid clutter 1) within the text and graphic components of the window signs, and 2) in combination with the objects of view through the window.
Standards
D8.s1.
Window signs shall generally be located in the lower or upper 25 percent of the window area. Window signs may be located in the middle portion of the window, but should not substantially obscure the activities or displays beyond the window.
D8.s2.
Window signs should not be larger than 10 percent of each window or door area, except that window signs may be as large as 20 percent of each window area if no wall sign is provided.
D8.s3.
Storefront window signs shall be limited to either the tenant's name or logo. Operating hours may be applied onto the glass, but shall be kept small, preferably on the windows next to the front door.
D8.s4.
Window signs on glazing shall be either silk screened, back-painted, metal-leafed, or sand-blasted onto the glass. Vinyl letters are not allowed.
D9.
Awning Signs
Guidelines
D9.g1.
Awning signs should be carefully controlled so as not to become substitutes for wall signs or projecting signs
Standards
D9.s1.
Each awning may have a sign printed on its valence.
D9.s2.
Awning signs shall not be allowed above the ground floor. Awnings without signs may be allowed above the ground floor if they are compatible with the architecture.
D9.s3.
Awnings shall be consistent in color and visually balanced over the façade of the building.
D9.s4.
Standard residential type aluminum awnings shall not be used. Awnings shall be composed of non-combustible acrylic fabric.
D9.s5.
Back-lit translucent awnings with or without signs shall not be allowed. Shielded down lights within an awning that light only the paving under the awning may be acceptable.
D9.s6.
Entry canopies shall not be allowed if they extend more than 4 feet from the building face.
D9.s7.
Awning signs shall be located primarily on the awning valence that faces the street, not on a valence that is generally perpendicular to the street.
D9.s8.
If side panels are provided, such panels should not carry signs greater in area than 20 percent of the area of the awning sign panel.
D9.s9.
Text on awning valences shall not be greater than 8 inches high. A valence drop length shall be no greater than 12 inches.
D9.s10.
Awnings shall not extend vertically beyond a building's or storefront's individual bays.
D9.s11.
Awnings shall be composed of traditional forms, and compliment the window or bay within which it occurs. Straight, more steeply sloped awnings are preferred. Rounded 'barrel' awnings are discouraged. Rounded awnings designed to fit arched windows or bays are acceptable.
The Old Town area of the City has served as the cultural and economic center of the community for decades and retains many buildings that convey its early character through traditional architectural styles, Maintaining and enhancing an Old Town look and feel is critical to the success of Old Town and its economic viability.
These design guidelines provide direction for future improvements in the Old Town area by enhancing revitalization efforts and protecting property investments. The goal is to protect those historic resources and to revitalize the area by encouraging new development and building rehabilitation.
The guidelines will assist interested parties in understanding the aesthetic and historic character of the buildings and assist owners with decisions about renovation, repair, maintenance, rehabilitation and new construction. The guidelines are not a rigid set of rules and do not require that buildings be restored to an historic period or style. Rather, their purpose is to provide:
A.
Guidance to property owners and tenants about the Old Town buildings, their distinctive characteristics and how to maintain them;
B.
Various appropriate ways to address design, repair and rehabilitation issues;
C.
Good maintenance practices; and
D.
Appropriate ways to design new, compatible infill buildings.
The Old Town Design District and Old Town Center Design District have been established as overlay districts to protect and enhance the older architectural styles found in the Old Town area of the City.
The guidelines provide guidance for improvements to all properties within the two overlay districts, as described in Article VI, Chapter 8, Section 2 and Article VI, Chapter 8, Section 3. The guidelines apply to exterior alterations, additions to or the rehabilitation of existing buildings. They also apply to the design and construction of new single-family residential, multi-family residential, commercial, office, medical and industrial buildings. It is the intent that the architectural style more closely follows historical precedent nearest the Old Town Center Design District and allows for more creativity while meeting Key Principles around the edges of the Old Town Design District.
A.
The Old Town Design Review Committee (OTDRC) is authorized to enforce these design standards for new construction and renovations considering applications for letters of design approval. While the design committee may be flexible in applying these standards to projects, the intent of these regulations is ensuring that new construction and renovations are appropriate and support the historic character of the area. Property owners, developers, tenants and architects should use the guidelines when considering a project. In making its determination of the appropriateness of a project, the OTDRC shall utilize the following criteria:
1.
The proposed work generally complies with these standards.
2.
The integrity of an individual historic structure is preserved, as much as possible.
3.
New buildings or additions are designed to be compatible with surrounding properties.
4.
The overall character of Old Town is protected.
B.
The design review process guides an approach to certain design problems by offering alternative solutions and does not dictate a specific outcome. While ordinary repair and maintenance do not usually require approval, a Letter of Design Approval is necessary for any change to the exterior of a building that requires a building permit.
A.
Old Town Design Review Committee - The Old Town Design Review Committee has the authority described in Article III, Chapter 1, Section 5 of this UDC to administer these guidelines. The committee has been given the duty of reviewing and approving or denying proposed projects under applications for letters of design approval.
B.
Old Town Design Guidelines - The Old Town architectural design standards will serve as the guide by which the Old Town design review committee reviews projects for appropriateness.
C.
Letter of Design Approval - Within the Old Town Center Design District and the Old Town Design District overlay districts, the issuance of a Letter of Design Approval affirms appropriate design under the overlay district regulations and these guidelines and is required in accordance with the procedures and requirements contained within Article VI, Chapter 8, Section 2 and Article VI, Chapter 87, Section 3. All drawings and plans required for the pre-development conference and application for a Letter of Design Approval should be drafted to scale and executed in a manner that clearly depicts the character of the proposed work. While a professionally produced drawing is encouraged, it is not required, as the sketches that follow illustrate.
LETTER OF DESIGN APPROVAL PROCESS
The Old Town Center Design District should continue to develop in a coordinated manner so that an overall sense of visual continuity is achieved. The dominant character of this area should be that of a retail-oriented, commercial environment, with an active street edge that is inviting to pedestrians while also accommodating automobiles. Development should include a mix of building types, including older structures and compatible newer ones. Each should reflect the design trends of its own time, while also contributing to a sense of visual continuity and strengthening the pedestrian experience. In addition, a combination of uses is encouraged, including residential, office and retail.
A.
Building Setbacks - Buildings in commercial areas are aligned immediately at the inside edge of the sidewalk. This contributes to a sense of visual continuity. A typical building should have its primary entrance oriented to the street to establish a "pedestrian-friendly" quality. In most cases, entryways should be evenly spaced along a block, and recessed from the sidewalk edge, creating a sense of visual continuity. Secondary public entrances to commercial spaces or to upstairs space are also encouraged on a larger building.
Structures in the Old Town Center Design District should create a strong "building wall" along the street. A new building should align at the front lot line and be built out to the full width of the parcel (i.e., to the side lot lines). Although small gaps can occur between some structures, these are exceptions.
B.
Mass and Scale - Patterns are created along the street by the repetition of similarly sized building elements. For example, uniform facade widths evenly spaced in downtown create a rhythm that contributes to the visual continuity of the area.
C.
Building Form - One of the most prominent unifying elements of the Old Town Center is the similarity in building form. Commercial buildings are simple rectangular solids, deeper than they are wide. This characteristic is important and should be continued. Also, commercial roof forms appear flat, although there is typically a slight pitch to it for water to drain. This characteristic is important and should be preserved.
D.
Materials - Building materials of new structures should contribute to the visual continuity of the area. They should appear similar to those used traditionally to establish a sense of visual continuity. Brick and cast stone are the dominant materials and are preferred for new construction.
E.
Architectural Character - The street level floors of traditional commercial buildings are clearly distinguishable from the upper floors. First floors are predominantly fixed plate glass with a small percentage of opaque materials. Upper floors are the reverse: opaque materials dominate, and windows appear as smaller openings puncturing the solid walls. The floor-to-floor height on the street level is also generally taller than the upper floors. This feature should also be expressed in new construction.
This Section presents design guidelines for individual building elements that are influential to the overall character of Old Town buildings. When the elements are appropriately used in combination with one another, buildings will reflect a look and feel that is consistent with the goals of the Old Town Center Design District. Within each element are individual goals and design guidelines upon which the City will base its decisions as to the appropriateness of any new or remodeled structure
A.
Architectural Styles - The architectural style of all new and rehabilitate buildings in the Old Town Center Design District should be consistent and compatible with traditional buildings of the area.
While it is important that buildings be compatible with the surrounding traditional commercial context, it is not necessary that they imitate older building styles. The property owner is encouraged to use the one of the styles listed below, or an appropriate variation, in designing the overall character of their building. More detailed descriptions of each style can be found in Chapter 7:
1.
Italianate — Circa 1885—1900.
2.
Vernacular commercial storefronts — Circa 1900—1920.
B.
Mass, Scale, and Form - A building's mass and size are its exterior bulk, and form is its shape in its relationship to its adjoining buildings and to its users - pedestrians. Building heights vary in the Old Town center and yet there is a strong sense of similarity in scale. Individual buildings are attached, often sharing interior sidewalls. Maintain the traditional mass, size and form of buildings seen along the street (i.e., a building should be a rectangular mass that is one- to three-stories in height).
1.
Buildings are rectangular in shape, deeper than wide.
2.
Facades and sidewalls are rectangular.
3.
At street level, buildings should not have long, monotonous, uninterrupted walls.
4.
Building wall offsets, including projections, recesses, changes in floor level, or changes of materials should be used to add architectural variety and interest, and to relieve the visual impact of a blank wall.
5.
While buildings may span several of the 20- to 30-foot wide properties, the individual lot width is still expressed as a distinct bay or module. Buildings should reflect this pattern.
6.
Floor heights should be expressed with horizontal moldings, alignment of windows and other architectural details.
____________
•
New interpretations of traditional building styles are encouraged.
•
A new design that draws upon the fundamental similarities among older buildings in the area without copying them is preferred. This will allow the building to be seen as a product of its own time and yet be compatible with its historic neighbors.
•
Buildings that are similar in scale and overall character to those seen historically are strongly encouraged.
•
Infill should be a balance of new and old in design.
•
This applies to architectural details as well as the overall design of a building
____________
BUILDING MASSING
C.
Roofs - The character of the roof is also a major feature for most historic structures. When repeated along the street, the repetition of similar roof forms contributes to a sense of visual continuity for the Old Town Center Design District.
1.
Roofs are flat and hidden by a parapet wall which add architectural character.
2.
Parapets on side facades should step down towards the rear of the building.
3.
Gable roof forms may also be considered if they are obscured by a "false front" storefront
4.
A parapet wall should not be altered, especially those on primary elevations or highly visible facades.
5.
Parapet walls should not be lowered or removed. Removing the parapet may damage the flashing for the roof and cause moisture problems.
6.
Avoid waterproofing treatments, which can interfere with the parapet's natural ability to dry out quickly when it gets wet.
FALSE FRONT (PEDIMENT & FLAT ROOF WITH PARAPET)
D.
Materials - The use of traditional building materials found in the area should be continued.
1.
Brick and cast stone are preferred.
2.
A simple material finish is encouraged for a large expanse of wall plane.
3.
A matte, or non-reflective, finish is preferred.
4.
Polished stone should be avoided as a primary material.
5.
Use the gentlest means possible to clean the surface of a structure. Harsh cleaning methods, such as sandblasting, can damage the historic materials, changing their appearance. Such procedures are inappropriate.
6.
Original building materials or features shall not be covered. Synthetic stucco, panelized brick, vinyl, aluminum or other composite siding materials are not appropriate.
7.
Removing more recent covering materials that have not achieved historic significance is encouraged.
8.
In some instances, a more recent covering may have achieved historic significance, especially if it was applied early in the building's history and may be maintained on the structure.
9.
An applicant may not re-side a building with another covering material if one already exists. Removing the covering to expose the original material is appropriate in such a case. Once the covering siding has been removed, repair the original underlying material.
10.
Color may be used to embellish building facade elements and enhance the attractive details of commercial buildings and should not disguise or overpower them. Colors should complement neighboring buildings and reflect a traditional color palette. Extremely bright, fluorescent or neon colors shall not be permitted as the primary color on the facades of buildings in the Old Town Design District. Only colors similar to or comparable to the palette adopted by the National Trust for Historic Preservation will be allowed.
E.
Architectural Elements - Architectural elements are the individual components of a building, including walls, doors, windows, cornices, parapets, roofs, pediments, and other features. Ornamental items include hoodmolds, trim at doors and windows; plaques and medallions; signboards or sign panels; date or name stones; and simple geometric shapes in metal, stone, or concrete.
Ornamentation and details of elements such as cornices and parapets are original components that enhance a building and give it a sense of style and character. Design commercial buildings, including both rehabilitation and new buildings, to include as many of these traditional defining elements as possible (i.e., recessed entries, display windows, kickplates, transom windows, midbelt cornices, cornices or pediments and vertically oriented upper-story windows).
Commercial buildings should, for the most part, all relate to the street and to pedestrians in the same manner: with a clearly defined primary entrance and large display windows. This will help maintain the interest of the street to pedestrians by providing views to goods and activities inside first floor windows. The repetition of these standard elements creates a visual unity on the street that should be preserved.
Specific Design Elements include:
1.
Storefronts.
a.
Alternative designs that are contemporary interpretations of traditional storefronts may be considered.
b.
Where the original storefront is missing, and no evidence of its character exists, a new design that uses the traditional elements may be considered. However, the new design should continue to convey the character of typical storefronts, including the transparent character of the display window.
c.
Retain the kickplate as a decorative panel. The kickplate, located below the display window, adds interesting detail to the streetscape and should be preserved. If the original kickplate is covered with another material, it should be exposed. If the original kickplate is missing, develop a sympathetic replacement design. Wood is an appropriate material for replacements on most styles. However, ceramic tile and masonry may also be considered when appropriately used with the building style.
d.
Significantly increasing (or decreasing) the amount of glass will negatively affect the integrity of a structure.
e.
On traditional storefronts, first floors should be more transparent than upper floors. Upper floors should appear more solid than first floors.
DESIGN ELEMENTS
KICKPLATE REPLACEMENT
2.
Entrances - Recessed entries were designed to provide protection from the weather. The repetition of recessed entries provides a rhythm of shadows along the street that helps to identify businesses and establish a sense of scale. Typically, recessed entries were set back between three and five feet.
a.
Maintain recessed entries where they are found.
b.
Restore the historic recessed entry if it has been altered.
c.
Avoid doors that are flush with the sidewalk.
d.
Where entries were not recessed historically, maintain them in their original position. However, one may also need to comply with other code requirements, including door width, direction of swing and construction. In some cases, entries must comply with accessibility requirements of the Americans with Disabilities Act. Note, however, that some flexibility in application of these other regulations is provided for historic properties.
e.
Building entrances should appear similar to those used traditionally in the block.
f.
Clearly define the primary entrance with an awning, canopy or other architectural or landscape feature.
g.
Secondary public entrances are also encouraged on a larger building or along an alley if there is parking in the rear of the site.
3.
Windows and doors - Windows and doors are some of the most important character-defining features of older structures, and give scale to buildings and provide visual interest to the composition of individual facades. Distinctive window and door designs help define many building styles. Windows and doors often are inset into relatively deep openings or have surrounding casings and sash components that have a substantial dimension that cast shadows. A typical, upper-story window is twice as tall as it is wide. Therefore, upper-story windows in new construction should relate to these proportions. Features important to the character of a window include its clear glass, frame, sash, muntin, mullions, glazing, sills, heads, jambs, moldings, operation, location and relation to other windows. Features important to the character of a door include the door itself, doorframe, screen door, threshold, glass panes, paneling, hardware, detailing, transoms and flanking sidelights.
a.
Retain the original shape of the transom glass in historic storefronts. Transoms, the upper glass band of traditional storefronts, introduced light into the depths of the building, saving on light costs. These bands should not be removed or enclosed.
b.
The shape of the transom is important to the proportion of the storefront, and it should be preserved in its historic configuration.
c.
If the original glass is missing, install new glass.
d.
Preserve the position, number, size and arrangement of historic windows and doors in a building wall. Many windows are "one-over-one," in that a single pane of glass is in both the upper and lower sashes. Others are "two-over-one," with two panes (or lights) in the upper sash and one is in the lower sash. These arrangements are preferred.
e.
Enclosing an historic opening is inappropriate, as is adding a new opening.
f.
Do not reduce the size of an original opening to accommodate a smaller window. Restore original openings which have been altered over time.
g.
Traditionally, windows had a vertical emphasis. The proportions of these windows contribute to the character of each residence and commercial storefront and should be maintained.
h.
If glass is broken or has been removed in the past, consider replacing it with new glass.
i.
Installing window air-conditioners in windows on building fronts is inappropriate.
j.
A new or replacement window or door should match the appearance of the original. While replacing an entire window or door is discouraged, it may be necessary in some cases. Although wood is preferred as a replacement material, alternative materials may be considered, if the resulting appearance matches the original as closely as possible. The substitute also should have a demonstrated durability in this climate.
k.
Very ornate windows or doors that are not appropriate to the building's architectural style are inappropriate.
l.
Windows should align with others in a block. Windows, lintels and their trim elements should align with those on adjacent older buildings.
4.
Architectural Embellishment - Most historic commercial buildings have cornices to cap their facades. Their repetition along the roof line contributes to the visual continuity on the block.
a.
Preserve the character of the cornice line.
b.
Reconstruct a missing cornice when historic evidence is available. Use historic photographs to determine design details of the original cornice.
c.
Replacement elements should match the original in every detail, especially in overall size and profile.
d.
The substitution of another old cornice for the original may be considered, provided that the substitute is similar to the original.
e.
Appropriate materials include stone, brick and stamped metal.
5.
Awnings and Canopies
a.
An awning or canopy should be similar to those seen traditionally.
b.
An awning compatible in material and construction to the style of the building is encouraged.
c.
Canvas awnings are inappropriate in the Old Town center.
d.
Use awning colors that are compatible with the overall color scheme of the facade. Solid colors or simple, muted-stripe patterns are appropriate.
e.
The awning should fit the opening of the building.
f.
Simple shed awnings are appropriate for rectangular openings.
g.
Odd shapes, bull nose awnings and bubble awnings are inappropriate on most historic structures.
h.
Internal illumination of an awning is inappropriate. Lights may be concealed in the underside of a canopy, however.
i.
A fixed metal canopy may be considered.
j.
Appropriate supporting mechanisms are wall-mounted brackets, chains and posts.
k.
An awning or canopy should be mounted to accentuate character-defining features such as transom windows. The mounting technique should not damage significant features and traditional details.
6.
Pedestrian Character
a.
The project should reinforce the retail-oriented function of the street and enhance its pedestrian character.
b.
Promote friendly, walkable streets (i.e., projects that support pedestrian activity and contribute to the quality of life are encouraged).
c.
Provide site amenities, such as benches, lights, waste receptacles, landscaping, etc., to enhance the pedestrian experience.
The Commercial Component of Old Town Outside the Old Town Center Design District should develop in a manner that is inviting to pedestrians while also accommodating automobiles and be architecturally complementary to the Old Town center. Development should include a mix of building types, including older structures and compatible newer ones. Each should reflect the design trends of its own time, while also contributing to a sense of visual continuity and strengthening the pedestrian experience. In addition, a combination of uses within a single structure or development is encouraged, including residential, office and retail.
A.
Building Setbacks - A wide variety of building setbacks can be seen throughout the Old Town Design District. Much of this variety is due to the influence of the automobile and need to provide on-site parking. This parking typically has been provided in front of the building for consumer convenience. However, this trend has caused an erosion of the historic edge of buildings located along a sidewalk. Therefore, new developments should respect this original tradition of building placement with parking located in the side and rear when feasible.
B.
Mass and Scale - A variety of building sizes exist in this area. While contemporary design approaches are encouraged, developments should continue to exhibit this same variety in size and scale.
C.
Building Materials - Building materials of structures should contribute to the visual continuity of the area.
D.
Architectural Character - The Old Town center is made up of architectural styles from the early 1900s. These architectural styles should be extended outside the Old Town center. Commercial, office, medical, retail and industrial buildings throughout the Old Town Design District should utilize these architectural features and details on new structures. Buildings also relate to one another through the consistent use of similar building materials, storefronts, recessed entries and the alignment of these different elements along a block. This tradition is strongly encouraged for new developments in the district. The residential neighborhoods of the design district represent a number of different architectural styles and reflect the time periods in which they were constructed. Commercial construction within the district may utilize residential architectural design thus blending the uses and the visual harmony of differing construction eras.
E.
Pedestrian environment - The design district should provide a controlled, organized transportation system that provides a safe pedestrian environment. Development should include direct, well-marked linkages from the sidewalk to a well-defined front door entry. Streets, sidewalks and landscaping should define the road edge and encourage walking, sitting and other pedestrian activities. Automobile activity should not, however, create an unsafe environment for the pedestrian. Automobile circulation patterns, both internal and external, should be clearly identified and should not interfere with pedestrian circulation systems.
F.
Tree Preservation - The mature tree canopy within Old Town should be preserved as much as possible and buildings located in a manner that preserves the natural character of the area.
This Section presents design guidelines for individual building elements that influence the overall character of buildings in Old Town. When the elements are appropriately used in combination with buildings will be consistent with the goals of the Old Town Design District. Within each element are individual goals and design guidelines statements upon which the City will base its decisions as to the appropriateness of any new or remodeled structure.
____________
•
New interpretations of traditional building styles are encouraged.
•
A new design that draws upon the fundamental similarities among older buildings in the area without copying them is preferred. This will allow the building to be seen as a product of its own time and yet be compatible with its historic neighbors.
•
Buildings that are similar in scale and overall character to those seen historically are strongly encouraged.
•
Infill should be a balance of new and old in design.
•
This applies to architectural details as well as the overall design of a building
____________
A.
Architectural Style - The architectural style of all new and rehabilitated buildings in the Old Town Design District should be designed to reflect either traditional Old Town center commercial buildings or be consistent and compatible with that of the traditional residential styles of the area.
Buildings that are designed to reflect the traditional commercial style of Old Town should utilize compatible architectural styles. While it is important that buildings be compatible with the surrounding traditional commercial context, it is not necessary that they exactly imitate older building styles. Buildings that reflect a traditional residential style should incorporate an individual style and not blend various styles found in the area. The property owner is encouraged to use the one of the styles listed below, or an appropriate variation, in designing the overall character of their building. More detailed descriptions of each style can be found in Chapter 7:
1.
Italianate — Circa 1885—1900.
2.
Vernacular commercial storefronts — Circa 1900—1920.
3.
Folk Victorian Style Residential — Circa 1870—1910
4.
Queen Anne Victorian Style Residential — Circa 1880—1910
5.
Prairie Style Residential — Circa 1900—1920.
6.
Craftsman Style Residential — Circa 1905—1930.
Multi-family residential - New or renovated multi-family projects in the Old Town Design District should utilize a style that is consistent with commercial buildings located in the Old Town Center Design District. Buildings should align closer to the street than a typical single-family detached structure. Parking should be provided in the rear to enhance the pedestrian nature of the area and to showcase the architectural features of the structure.
B.
Mass, Scale, & Form - A wide variety of building setbacks can be seen throughout the Old Town design district, outside of the Old town center design district. Much of this variety is due to the influence of the automobile and need to provide on-site parking. This parking has typically been provided in front of the building which cause and erosion of the edge of buildings along the sidewalk seen historically. Therefore, it is strongly encouraged that new developments should locate parking on the side and rear when feasible. That said it is of vital interest to the City to preserve mature tree canopy within the area as much as possible and buildings may be located to preserve trees.
1.
Building wall offsets, including projections, recesses, changes in floor level, or changes of materials should be used to add architectural variety and interest, and to relieve the visual impact of a blank wall.
2.
While buildings may span lots much larger than the 20- to 30-foot wide properties originally established, the 20—30-foot lot width is still expressed as a distinct bay or module. Buildings should reflect this pattern.
3.
Traditional floor heights should be expressed with horizontal moldings, alignment of windows and other architectural details.
4.
Floor-to-floor heights shall appear to be similar to those seen traditionally. Windowsills, windows, moldings and cornices are among those elements that should align.
C.
Roofs - The character of the roof is a major feature for most historic structures. When repeated along the street, the repetition of similar roof forms contributes to a sense of visual continuity for the neighborhood. The roof pitch, roof materials, size and orientation are all distinct features that contribute to the character of a roof. Gabled and hip forms occur most frequently in residential areas while flat roofs appear on older commercial buildings in the City. Although the function of a roof is to protect a structure from the elements, it also contributes to the overall character of the building. The Old Town Design District has various roof forms, as illustrated below.
ROOF FORMS
D.
Porches - Many building types developed with the porch as a prime feature of the front facade. Because of their historical importance and prominence as character-defining features, porches should be preserved and receive sensitive treatment during exterior rehabilitation. Porches vary as much as architectural styles. They differ in height, scale, location, materials and articulation. Some are simple one-story structures, while others may be complex with elaborate details and finishes. These elements often correspond to the architectural style of the house and therefore the building's design character should be considered before any major rehabilitation work is begun.
1.
Maintain the existing location, shape, details, and columns of the porch.
2.
Missing or deteriorated decorative elements should be replaced with new wood, milled to match existing elements. Match the original proportions and spacing of balusters when replacing missing ones.
3.
Unless used historically, wrought iron porch posts and columns are inappropriate.
4.
Enclosing a porch with opaque materials that destroy the openness and transparency of the porch is inappropriate. When a porch is enclosed or screened, it shall be done with a clear transparent material. This material should be placed behind porch columns.
E.
Materials - The use of traditional building materials found in the area should be continued. Brick and stone were the primary materials used for building walls, chimneys, porch supports and foundations. Wood siding also was applied to on residential structures, with painted, horizontal clapboard being the most popular. In each case, the distinct characteristics of the building material, including the scale of the material unit, its texture and finish, contribute to the historic character of a building.
The best way to preserve or rehabilitate older building materials is through well-planned maintenance. Wood surfaces should be protected with a good application of paint. In some cases, historic building materials may be deteriorated, and repair rather than replacement is preferred. Frequently, damaged materials can be patched or consolidated using special bonding agents. In other situations, however, some portion of the material may be beyond repair and must be replaced. The new material should match the original in appearance. Rather than replace original materials, some property owners may consider covering them. Aluminum and vinyl siding, however, are not allowed.
1.
Materials shall appear to be similar to those used traditionally.
2.
Brick and cast stone were the traditional materials of commercial style buildings
3.
Brick, cast stone and wood horizontal lap siding were the traditional materials of residential style buildings. When horizontal siding is appropriate, a cementitious siding such as Hardie plank may be used to achieve the desired look while being more durable and requiring less maintenance.
4.
A simple material finish is encouraged for a large expanse of wall plane.
5.
A matte, or non-reflective, finish is preferred.
6.
Polished stone should be avoided as a primary material.
7.
Color may be used to embellish building facade elements and enhance the attractive details of commercial buildings and should not disguise or over power them. Colors should complement neighboring buildings and reflect a traditional color palette. Extremely bright, fluorescent or neon colors shall not be permitted as the primary color on the facades of buildings in the Old Town Design District. Only colors similar to or comparable to the palette adopted by the National Trust for Historic Preservation will be allowed.
F.
Architectural Elements - For non-residential styled buildings, individual building architectural elements play a critical role in the overall appearance. The following design elements should be used only for non-residential structures. Architectural elements are the individual components of a building, including walls, doors, windows, cornices, parapets, roofs, pediments, and other features. Ornamental items include hoodmolds, trim at doors and windows; plaques and medallions; signboards or sign panels; date or name stones; and simple geometric shapes in metal, stone, or concrete.
Ornamentation and details of elements such as cornices and parapets are original components that enhance a building and give it a sense of style and character. Design commercial buildings, including both rehabilitation and new buildings, to include as many of these traditional defining elements as possible (i.e., recessed entries, display windows, kickplates, transom windows, midbelt cornices, cornices or pediments and vertically oriented upper-story windows)
Commercial buildings should, for the most part, all relate to the street and to pedestrians in the same manner: with a clearly defined primary entrance and large display windows. This will help maintain the interest of the street to pedestrians by providing views to goods and activities inside first floor windows. The repetition of these standard elements creates a visual unity on the street that should be preserved.
Specific Design Elements include:
1.
Storefronts
a.
While commercial structures in the Old Town Design District may be set back from the street edge, a storefront that defines the main entry from the street for both the pedestrian and the automobile should be provided.
b.
Alternative designs that are contemporary interpretations of traditional storefronts may be considered.
c.
Here the original storefront is missing, and no evidence of its character exists, a new design that uses the traditional elements may be considered. However, the new design should continue to convey the character of typical storefronts, including the transparent character of the display window.
d.
Significantly increasing (or decreasing) the amount of glass will negatively affect the integrity of a structure.
e.
On traditional storefronts, first floors should be more transparent than upper floors. Upper floors should appear more solid than first floors.
f.
Avoid blank walls that do not provide interest to pedestrians.
g.
Large surfaces of glass are inappropriate on the upper floors and sides of commercial buildings. If necessary, divide large glass surfaces into smaller windows that are in scale with those seen traditionally.
DESIGN ELEMENTS
KICKPLATE REPLACEMENT
2.
Entrances — Recessed entries were designed to provide protection from the weather. The repetition of recessed entries provides a rhythm of shadows along the street that helps to identify businesses and establish a sense of scale. Typically, recessed entries were set back between three and five feet.
a.
Maintain recessed entries where they are found.
b.
Restore the historic recessed entry if it has been altered.
c.
Where entries were not recessed historically, maintain them in their original position. However, one may also need to comply with other code requirements, including door width, direction of swing and construction. In some cases, entries must comply with accessibility requirements of the Americans with Disabilities Act. Some flexibility in application of these other regulations is provided for historic properties.
d.
Clearly define the primary entrance with an awning, canopy or other architectural or landscape feature.
e.
Secondary public entrances are also encouraged on a larger building or along an alley if there is parking in the rear of the site.
3.
Windows and Doors - Windows and doors are some of the most important character-defining features of older structures. They give scale to buildings and provide visual interest to the composition of individual facades. Distinct window and door designs help define many building styles. Windows and doors often are inset into relatively deep openings or they have surrounding casings and sash components that have a substantial dimension that cast shadows which also contributes to the character of the historic style. A typical, upper-story window is twice as tall as it is wide and upper-story windows in new construction should relate to these window proportions. Features important to the character of a window include its clear glass, frame, sash, muntin, mullions, glazing, sills, heads, jambs, moldings, operation, location and relation to other windows. Features important to the character of a door include the door itself, doorframe, screen door, threshold, glass panes, paneling, hardware, detailing, transoms and flanking sidelights.
a.
Retain the original shape of the transom glass in historic storefronts. Transoms, the upper glass band of traditional storefronts, introduced light into the depths of the building. These bands should not be removed or enclosed.
b.
The shape of the transom is important to the proportion of the storefront, and it should be preserved in its historic configuration.
c.
If the original glass is missing, install new glass.
d.
Preserve the position, number, size and arrangement of historic windows and doors in a building wall. Many windows are "one-over-one," in that a single pane of glass is in both the upper and lower sashes. Others are "two-over-one," with two panes (or lights) in the upper sash and one is in the lower sash. These arrangements are preferred.
e.
Enclosing an historic opening in a facade is inappropriate, as is adding a new opening.
f.
Do not close down an original opening to accommodate a smaller window. Restoring original openings which have been altered over time is encouraged.
g.
Traditionally, windows had a vertical emphasis. The proportions of these windows contribute to the character of each residence and commercial storefront.
h.
If glass is broken or has been removed in the past, it should be replaced. If security is a concern, only wire glass or tempered glass, are appropriate.
i.
Installing window air-conditioners in windows on building fronts is inappropriate.
j.
A new or replacement window or door should match the appearance of the original. While replacing an entire window or door is discouraged, it may be necessary in some cases. Although wood is preferred as a replacement material, alternative materials may be considered if the resulting appearance matches the original as closely as possible. The substitute also should have a demonstrated durability in this climate.
k.
Very ornate windows or doors that are not original to the building's architectural style are inappropriate.
l.
Windows should align with others in a block. Windows, lintels and their trim elements should align with those on adjacent older buildings.
4.
Architectural Embellishment — Most historic commercial buildings have cornices to cap their facades. Their repetition along the street contributes to the visual continuity on the block.
a.
Preserve the character of the cornice line.
b.
Reconstruct a missing cornice when historic evidence is available. Use historic photographs to determine design details of the original cornice.
c.
Replacement elements should match the original in every detail, especially in overall size and profile.
d.
The substitution of another old cornice for the original may be considered, provided that the substitute is similar to the original.
e.
Appropriate materials include stone, brick and stamped metal.
5.
Awnings and Canopies.
a.
An awning or canopy should be similar to those used traditionally.
b.
An awning compatible in material and construction to the style of the building is encouraged.
c.
Canvas awnings are inappropriate in the Old Town Center.
d.
Use awning colors that are compatible with the overall color scheme of the facade. Solid colors or simple, muted-stripe patterns are appropriate.
e.
The awning should fit the opening of the building.
f.
Simple shed shapes are appropriate for rectangular openings.
g.
Odd shapes, bull nose awnings and bubble awnings are inappropriate on most historic structures.
h.
Internal illumination of an awning is inappropriate. Lights may be concealed in the underside of a canopy, however.
i.
A fixed metal canopy may be considered.
j.
Appropriate supporting mechanisms are wall-mounted brackets, chains and posts.
k.
Mount an awning or canopy to accentuate character-defining features. It should not hide character-defining features such as transom windows. The method and tools used for mounting should not damage significant features and traditional details.
G.
Pedestrian Character - To promote friendly, walkable streets, The Old Town area should continue to develop as a pedestrian-oriented environment. Streets and sidewalks should encourage walking, sitting and other outdoor activities. Buildings also should be visually interesting to invite exploration by pedestrians. Existing pedestrian routes should be enhanced.
1.
Develop the ground floor level of a project to encourage pedestrian activity.
a.
Sidewalks are required from the front street sidewalk to the main entrance. Secondary entrances should be in the rear or side of the building to allow for ease of access from side or rear parking areas.
b.
Avoid blank walls and large gaps between buildings.
c.
A building should have a clearly defined primary entrance oriented toward the street.
d.
Enhance the street edge and building entrances for both drivers and pedestrians. This can be accomplished by landscape features, brick entry pillars, sidewalk paver bands at the sidewalk or driveway edge.
e.
Use landscaping and lighting accents to identify entrances.
f.
Place parking areas to the rear or side of a building when feasible.
The residential component of the Old Town Design District should be inviting to pedestrians and retain the feel of older neighborhoods. Development should include a mix of building types, including renovated older structures and newer structures constructed in an architectural style that contributes to a sense of visual continuity and strengthening the residential experience. Where appropriate, a combination of residential uses is encouraged, including single-family, townhouses and multi-family.
A.
Building Setbacks - A wide variety of building setbacks can be seen throughout the Old Town Design District. Much of this variety is due to the influence of the automobile and need to provide driveways and parking, as well as the lack of zoning regulations when these neighborhoods were developed. Therefore, it is strongly encouraged that new residential developments should build on this original tradition of building placement and locate parking in the side and rear when feasible.
B.
Building Materials - Building materials of structures should contribute to the visual continuity of the area.
C.
Architectural Character - The neighborhoods in the design district represent several different architectural styles and reflect the time periods in which they were constructed.
D.
Pedestrian environment - The design district should provide a controlled, organized transportation system that provides a safe pedestrian environment. Development should include direct, well-marked linkages from the sidewalk to a well-defined front door entry. Streets, sidewalks and landscaping should define the street edge and encourage walking, sitting and other pedestrian activities.
E.
Tree Preservation - The mature tree canopy within Old Town should be preserved as much as possible and buildings located in a manner that preserves the natural character of the area.
This Section presents design guidelines for individual building elements that are influential to the overall character of Old Town residential buildings. When the elements are appropriately used in combination, buildings will be consistent with Old Town. Within each element are individual goals and design guidelines statements upon which the City will base its decisions as to the appropriateness of any new or remodeled structure.
A.
Architectural Style - The architectural style of all new and rehabilitated residential buildings in the Old Town Design District should be designed to be consistent and compatible with that of the traditional residential styles of the area.
Buildings that are designed to reflect the traditional style of Old Town should utilize a compatible architectural style. While it is important that buildings be compatible with the surrounding structures, it is not necessary that they exactly imitate older building styles. Buildings that reflect a traditional residential style should incorporate an individual style and not blend various styles found in the area. The property owner is encouraged to use the one of the styles listed below, or an appropriate variation, in designing the overall character of their building. More detailed descriptions of each style can be found in Chapter 5:
1.
Queen Anne Victorian Style Residential — Circa 1880—1910
2.
Folk Victorian Style Residential — Circa 1870—1910
3.
Prairie Style Residential — Circa 1900—1920.
4.
Craftsman Style Residential — Circa 1905—1930.
Townhouse Development - Any attached townhouse development should utilize an architectural design that is compatible with, or similar to a residential design listed above. Other designs are appropriate when key elements are taken into consideration, such as porches, windows, doors, roofs, materials, and overall design, and each unit is designed in a manner that fits with the overall character of Old Town. When multiple units are attached, it is important that each unit stands apart by using individual porches, variations in exterior facade materials or colors, minor changes in front set-backs to create a human scale to the grouping of units and not a sense of one large building.
B.
Materials - The use of traditional building materials found in the area should be continued.
Brick and stone were the primary materials used for chimneys, porch supports and foundations. Brick and wood siding were also common residential façade materials, with painted, horizontal clapboard being the most popular. In each case, the distinct characteristics of the building material, including the scale of the material unit, its texture and finish, contribute to the historic character of a building.
The best way to preserve or rehabilitate older building materials is through well-planned maintenance. Wood surfaces, for example, should be protected with a good application of paint. In some cases, historic building materials may be deteriorated and repairing the material rather than replacing it is preferred. Frequently, damaged materials can be patched or consolidated using special bonding agents. In other situations, however, some portion of the material may be beyond repair and must be replaced. The new material should match the original in appearance. Rather than replace original materials, some property owners may consider covering them. Aluminum and vinyl siding, however, are not allowed.
1.
Materials shall appear to be similar to those used traditionally.
2.
Brick, cast stone and horizontal lap siding were the traditional materials of residential buildings. When horizontal siding is required a cementitious siding such as Hardie Plank may be utilized to provide a material that is more durable and requires less maintenance.
3.
A simple material finish is encouraged for a large expanse of wall plane.
4.
A matte, or non-reflective, finish is preferred.
5.
Polished stone should be avoided as a primary material.
6.
Color may be used to embellish building facade elements and enhance the attractive details of commercial buildings and should not disguise or overpower them. Colors should complement neighboring buildings and reflect a traditional color palette. Extremely bright, fluorescent or neon colors shall not be permitted as the primary color on the facades of buildings in the Old Town Design District. Only colors similar to or comparable to the palette adopted by the National Trust for Historic Preservation will be allowed.
C.
Architectural Elements - Include architectural elements similar to those seen traditionally such as porches, chimneys, roof brackets, decorative siding and bay windows.
1.
Roofs - The character of the roof is a major feature for most historic structures. When repeated along the street, the repetition of similar roof forms contributes to a sense of visual continuity for the neighborhood. The roof pitch, roof materials, size and orientation are all distinct features that contribute to the character of a roof. Gabled and hip forms occur most frequently in residential areas while flat roofs appear on older commercial buildings in the City. Although the function of a roof is to protect a structure from the elements, it also contributes to the overall character of the building. The Old Town Design District has various roof forms.
a.
In residential areas, most roof forms are pitched, such as gabled and hipped.
b.
Avoid altering the angle of an older roof. Instead, maintain the perceived line and orientation of the roof as seen from the street.
c.
Retain and repair roof detailing.
d.
If a new roof is necessary, try to match the color, material, and pattern of the old as closely as possible.
e.
Water from downspouts should drain away from the building properly. If this is not possible, a downspout should empty onto a metal or concrete splash block that slopes downward and away from the building.
2.
Porches - Many residential styles have a porch as a prime feature of the front facade. A porch protects an entrance from rain and provides shade in the summer. It also provides a sense of scale to the building and provides a space for residents to sit and congregate. A porch provides stylistic details to the house, and in some cases is an integral part of an architectural style. Because of their historical importance and prominence as character-defining features, porches should be preserved, and they should receive sensitive treatment during exterior rehabilitation. Porches vary as much as architectural styles. They differ in height, scale, location, materials and articulation. Some are simple one-story structures, while others may be complex with elaborate details and finishes. These elements often correspond to the architectural style of the house and therefore the building's design character should be considered before any major rehabilitation work is begun.
a.
Maintain the existing location, shape, details, and columns of the porch.
b.
Missing or deteriorated decorative elements should be replaced with new wood, milled to match existing elements. Match the original proportions and spacing of balusters when replacing missing ones.
c.
Unless used historically, wrought iron porch posts and columns are inappropriate.
d.
Enclosing a porch with opaque materials that destroy the openness and transparency of the porch is inappropriate. When a porch is enclosed or screened, it shall be done with a clear transparent material. This material should be placed behind porch columns.
C.
Establish a sense of scale in buildings and streetscape design that residents and pedestrians can enjoy.
1.
Homes should reflect setbacks, heights and lot coverages of existing homes on the block face.
2.
Landscaping can be used to help create sense of s streetscape design
D.
Minimize the visual impacts of automobiles.
1.
Parking should be in the rear.
2.
Garage doors should not face the street unless on a detached garage setback from the home.
E.
Strengthen the pedestrian network of sidewalks and paths.
The design guidelines focus on principles for rehabilitation and infill of commercial and mixed-use projects to reinforce the existing building fabric and enhance the pedestrian environment. To do so, they draw upon principles established in traditional commercial buildings. While these are the majority of property types that will be built in the area, institutional facilities should be a part of the urban mix as well. These institutional facilities may include churches, schools, libraries, courts and governmental offices. Traditionally, buildings for these uses have contrasted with the framework of storefronts. An example is an historic courthouse: It stands apart from the rows of commercial buildings, framed by a lawn as a foreground. Its entrances are more prominent. While it stands apart as a structure, however, it clearly is a part of the downtown, with its entrances oriented to the street and walkways promoting pedestrian use. This helps to convey its civic function as a gathering place. At the same time, the basic principles of urban design outlined in this document should still apply. Among them are the key principles below.
A.
Institutional facilities should be located such that they encourage pedestrian traffic to nearby downtown businesses.
B.
Institutional facilities should be designed to reinforce the downtown fabric of streets and sidewalks but may have increased setbacks for courtyards, plazas and landscaping to demonstrate the institutional importance to the community.
C.
Convenient pedestrian connections should link abutting Institutional buildings.
D.
The edges of an Institutional property should be inviting to pedestrians.
E.
The visual impacts of automobiles should be minimized.
F.
Primary entrances should face the street, not to parking lots.
G.
A sense of human scale should be conveyed.
H.
Impacts on adjacent historic resources should be minimized.
I.
Outdoor spaces designed for public use should be provided.
The Old Town Design District and Old Town Center Design district both contain a significant number of structures that are important to the original fabric and history of the community. Special consideration should be given to preserve these buildings and utilize them whenever possible. Utilization of these buildings often requires additions and alterations to adapt a residential structure into a commercial building or a commercial building into a residential use and should be done carefully so not to visually impact the significant nature of the original building.
A.
Design of Alterations - Alterations may be considered for historic buildings; however, alterations should occur in a manner that will not diminish the historic integrity of the property and they should be reversible for future property owners.
B.
Additions - Many buildings have experienced additions over time, as need for additional space occurred, particularly with a change in use. An historic addition typically was subordinate in scale and character to the main building. The height of the addition was usually positioned below that of the main structure and it was often located to the side or rear, such that the primary facade remained dominant. An addition was often constructed of materials that were similar to those in use historically. In some cases, owners simply added stories, creating more usable space without increasing the footprint of the structure. This tradition of adding on to buildings is anticipated to continue. It is important, however, that new additions be designed in such a manner that they maintain the character of the primary structure.
C.
Adaptive use - The adaptive use of a residence for a commercial or office use is a frequent occurrence in Old Town. However, when such adaptations must occur, they should be designed to have the least impact on the historic and residential character of a neighborhood. Although used for commercial purposes, these adapted properties should not be commercial in character. This means that the overall form of a building (with a sloping roof) and the landscaped front lawn should not be altered. Parking should be located to the rear or side of the structure.
This Section presents design guidelines for alterations and additions to existing buildings and should be used in conjunction with individual building elements that are influential to the overall character of Old Town. When the elements are appropriately used in combination buildings will reflect an appropriate look and feel that is consistent with Old Town. Within each element are individual goals and design guidelines statements upon which the City will base its decisions as to the appropriateness of any new or remodeled structure.
A.
Alterations - Design an alteration to be compatible with the original character of the property.
1.
Avoid alterations that would damage historic features such as original materials, windows, doors, entries, rooflines or architectural elements.
2.
Avoid alterations that would hinder the ability to interpret the design character of the original building.
3.
Alterations that seek to imply an earlier period than that of the building are inappropriate.
4.
Alterations should not damage original building features. For example, mounting a sign panel in a manner that causes decorative moldings to be chipped or removed would be inappropriate.
B.
Commercial Additions - The visual impacts of an addition to a commercial building should be minimized. Two distinct types of additions are considered to be appropriate, ground level or rooftop.
1.
Ground Level Additions - A ground-level addition that involves expanding the footprint of a structure should be to the rear or side of a building. This will have the least impact on the character of a building, but there may only be limited opportunities to do this.
a.
An addition shall be compatible in scale, materials and character with the main building.
b.
An addition shall relate to the building in mass, scale and form. It should be designed to remain subordinate to the main structure.
c.
An addition to the front of a building is inappropriate. However, where a building is set back from the front property line, the first consideration for the placement of an addition should be to fill the gap between the existing building and sidewalk. This will maintain the consistent "street wall" desired in the Old Town Center Design District.
d.
An addition shall not damage or obscure architecturally important features. For example, loss or alteration of a cornice line should be avoided.
2.
Roof Additions - An addition to the roof may be simple in character and set back substantially from the front of a building. In addition, the materials, window sizes and alignment of trim elements on the addition should be compatible to those of the existing structure. An addition may be made to the roof of a commercial building if it does the following:
a.
Is set back from the primary, character-defining facade, to preserve the perception of the historic scale of the building.
b.
Its design does not detract from the historic facade.
c.
Is distinguishable as new, albeit in a subtle way.
3.
Front Addition — Another option is to design an addition to the front wall plane of the existing building. This option may only be considered on a "newer" or more contemporary building that was originally set back from the front property line or sidewalk edge.
C.
Residential Additions - An addition to a residential structure should be compatible with the primary building. An addition to a structure can radically change its perceived scale and character if inappropriately designed. When planning an addition, consider the effect the addition will have on the building itself and keep the size of the addition small, in relation to the main structure. If an addition must be larger, it should set apart from the main structure and connected with a smaller linking element. A design for a new addition that would create an appearance inconsistent with the character of the building, especially an historic one, is discouraged. The effect the addition on the character of a street or neighborhood, as seen from the public right-of-way, is also important. For example, a side addition may change the sense of rhythm established by side yards in the block. Locating the addition to the rear could be a better solution in such a case.
RESIDENTIAL ADDITION
1.
Design a new addition such that the original character can be clearly seen. In this way, a viewer can understand the history of changes that have occurred to the building. An addition shall be compatible in scale, materials and character with the main building.
2.
An addition should be made distinguishable from the original building, even in subtle ways, such that the character of the original can be interpreted.
3.
Creating an offset in the foundation between the original and new structures may help to define an addition.
4.
A new trim board applied at the connection point between the addition and the original structure can help define the addition.
5.
Place an addition at the rear of a building or set it back from the front to minimize the visual impacts.
6.
Locating an addition at the front of a structure is inappropriate.
7.
Do not obscure, damage, destroy or remove original architectural details and materials of the primary structure.
8.
An addition shall relate to the historic building in mass, scale and form. It should be designed to remain subordinate to the main structure.
9.
If a residential addition would be significantly larger than the original building, consider separating it from the primary building, when feasible, and then linking it with a smaller connecting structure.
10.
An addition should be simple in design to prevent it from competing with the primary facade.
11.
Consider adding dormers to create second story spaces before changing the scale of the building by adding a full second floor.
12.
The roof form of a new addition shall be in character with that of the primary building.
13.
Typically, gable, hip and shed roofs are appropriate for residential additions. Flat roofs are appropriate for commercial buildings.
14.
Repeat existing roof slopes and materials.
15.
If the roof of the primary building is symmetrically proportioned, the roof of the addition should be similar.
D.
Residential to Commercial Conversions - When adapting a residence to a commercial use, respect the residential character of the building. Seek uses that are compatible with the historic character of the building. The openness of a front yard should be preserved. Converting a building to a new use that is different from that which its design reflects is considered to be "adaptive use." When residential use ceases to be viable, the first preference is to choose new uses that minimize the negative changes in building features. Often there are new uses that are inherently less disruptive to residential structures such as a bed and breakfast, professional offices, small specialty restaurants and personal service businesses.
1.
Seek uses that are compatible with the historic character of the building.
2.
The primary goal should be preserving the original residential character, appearance and scale of the structure.
3.
Avoid altering porches and original windows and doors.
Originally inspired by farmhouses found in Northern Italy, this blending of classical and romantic features became one of the most popular of the picturesque styles in the United States. Because of its ornate details, such as bracketed cornices, this style was easily adapted to simple buildings and storefronts. As the details and features of this style were capable of being interpreted in wood, masonry or iron, it was also very adaptable in the various regions of the country. With this adaptability and the sensibilities of the times, its popularity grew for commercial buildings.
Characteristics
•
Tall, narrow, double-hung windows, often with arched or round arch heads (commonly referred to as "punched" windows as opposed to "ribbon" windows)
•
Windowpanes are either one-over-one or two-over-two
•
Protruding sills
•
Quoins at building corners
•
Double doors with glass panels
•
Transom, often curved, above the front door
•
Brackets, modillions and dentil courses
•
Flat roof with ornate cornices
•
Decorative paired brackets
Usually between one and four stories, the vernacular commercial building is divided horizontally into two distinct bands. The first floor is more commonly transparent, so goods can be displayed, while the second story is usually reserved for residential or storage space. A steel beam that spans the glass opening typically supports the upper floor. However, many one-story examples also exist. A kick plate is found below the display window while above the display window, a smaller band of glass, a transom, is seen. Also, the main door is frequently recessed.
These buildings have stone and brick facades. Ornamental detail exists, but is simple, limited to a shallow molding such as a cornice. Some cornices were made of masonry, while others were made of stamped metal. Many carry simplified Italianate detailing. In essence, these buildings lack distinctive detail, contrasting them with the revival styles that were also popular during this period.
Characteristics
•
Cast-iron supported storefronts
•
Large display windows
•
Transom lights
•
Kickplate
•
Recessed entry
•
Tall second story windows
•
Cornice
Decorative detailing is one of the main characteristics of this architectural style. Houses typically have irregular shaped, hipped roofs often with steep pitches. Typically, the buildings are asymmetrical in shape with one dominant front-facing gable. Extensive detailing is utilized to avoid a smooth-wall appearance. Detailing can take multiple forms such as patterned shingles; "gingerbread" type spindlework; and cutaway bay windows and towers. Porches are partial or full-width and often extend along one sidewall. Spindlework is also used extensively on porches and friezes.
Characteristics
•
Steeply pitched, hipped roofs of irregular shape
•
Dominant front-facing gable
•
Irregular shapes utilizing cutaway bay window and towers
•
Extensive detailing to avoid a smooth-walled appearance
•
Asymmetrical faced with partial or full-width porch
•
Extensive use of spindlework on porches and friezes
This style is defined by the presence of Victorian decorative detailing on simple folk house forms and are typically much less elaborate than the Victorian styles that they mimicked. The primary areas for the detailing are the porch and cornice line. There are a number of subtypes but the most common one in Old Town is the asymmetrical gable front with wing and covered porch. Porch supports are commonly either turned spindles or square posts with beveled corners.
Characteristics
•
Simple folk house form
•
Gable front with wing
•
Single story with covered porch
•
Spindle work porch detailing
This style is sometimes referred to as the Prairie Box or American Foursquare. It has a simple square or rectangular plan, low pitched hipped roof and symmetrical facade. One story wings, porches or carports are common and subordinate to the principal two story mass. The entrance is often a conspicuous focal point of the facade. Hipped dormers are common as are full-width front porches. Characteristic horizontal decorative elements often consist of contrasting caps on porch or balcony railings as well as piers and chimneys. Other elements include contrasting wood trim between stories and horizontal siding.
Characteristics
•
Low-pitched roof usually hipped.
•
Widely overhanging eaves
•
Two stores with one story wings or porches
•
Eaves, cornices, and facade detailing with horizontal lines
•
Massive, square porch supports
•
Hipped dormers
This particular style originated in California and is often referred to as a bungalow, especially in the single-story version. Front gabled porches and house are most common. Porches may be either full or partial width and may be covered by either the main roof or a separate, extended roof. Single story is the most common, but one and one half are not uncommon. Columns for porch roofs are typically shorter, square upper columns resting upon more massive piers.
Characteristics
•
Low-pitched, gabled roof (occasionally hipped).
•
Wide, unenclosed eave overhang
•
Roof rafters usually exposed
•
Decorative beams or braces commonly added under gables
•
Full or partial width covered porches
•
Tapered square porch columns
This Section presents guidelines for the design of new and renovated signs in Lewisville's Old Town Design Districts. These guiding principles help to frame the prescriptive requirements of the Old Town Sign Ordinance. Within each category, individual policies and design guidelines are presented, which the Old Town Design Review Committee may reference in determining the appropriateness of the work proposed.
Signs are an integral part of the built environment and if designed well, can provide direction, encourage business growth, and enhance an area's image. If designed poorly, they can confuse viewers, stifle business, and detract from the appearance and perception of the public realm.
A sign typically serves two functions: to attract attention and to convey information, essentially identifying the business or services offered within a building. Architectural elements of a building, window displays, outdoor seating, and other streetscape elements can also work to supplement signage. For example, the building front alone can serve an attention-getting function, allowing the sign to be focused on conveying information.
In the determination of appropriate sign design, the following principles should be observed:
A.
Signs are subordinate to the building architecture.
B.
Signs are part of a larger streetscape.
C.
Signs are intended for different speeds of traffic.
Consider the building front as part of an overall sign program. Signs should be coordinated within the overall facade composition so that it is in proportion to the building and does not dominate the appearance.
Additionally, a master sign plan for the entire building should be developed to guide design decisions for individual signs. This is especially important where the use of contemporary building forms and styles in conjunction with several colorful, attention-getting signs are the norm. Typical "strip-commercial" development patterns are inappropriate in Old Town.
A sign should appear to be in scale with the facade. Locate signage on a building so that it emphasizes design elements of the facade. Mount signs to fit within existing architectural features and use the shape of the sign to reinforce the horizontal lines of moldings and transoms seen from the street.
The placement or location of a sign is perhaps the most critical factor in maintaining the order and integrity of Old Town. Consistent placement of signs according to building type, size, location, and even materials, creates a visual pattern that its audience can easily interpret and utilize to the mutual benefit of merchants, tourists, and customers.
A.
Color - The color palette for signs should be drawn from those approved by the National Trust for Historic Preservation. Colors should relate to each other as well as their surroundings. For example, a very light or white background on a sign may be too stark for its context and compete with the architectural elements of the building. Also limit the number of colors used on a sign. In general, no more than three to five colors are recommended.
B.
Typeface - Typical typefaces found in Old Town are constructed from serif-style fonts. Serif-style fonts tend to be more legible at larger sizes while sans-serif fonts are more appropriate for supporting detail text. A mixture of fonts and lettering sizes can add interest to a sign, provided that no more than two are used. Avoid hard-to-read or overly intricate typeface styles.
C.
Shape - The signs in Old Town should have detailed edges. For example, rectangular signs may have notched or rounded edges, and should relate to the architectural character of the building. An elliptical sign may be more appropriate as a projecting sign than as a wall sign if the shape of the sign is discordant with the architecture of the building. However, the same elliptical sign could be used to highlight the rhythm of architectural elements by locating it over a column or centered within a structural bay.
D.
Materials - Sign materials should be consistent with those listed in the Sign Guidelines. Additionally, monument signs should reflect the architectural style of the buildings on the same lot. For example, a monument sign for a brick building should be made of brick as well. Plastic is not an allowed signage material in Old Town.
E.
Lighting Type - Lighting types should also be consistent with those listed in the Sign Ordinance. Period style lighting fixtures should be considered. For projecting or wall signs, goose-neck style fixtures are recommended.
F.
Legibility - Care should be given to the intended audience of a sign and its readability. Positive contrast, or lighter text on a darker background, tends to be easier to read. Negative contrast, or darker text on a lighter background, can sometimes cause the lettering to develop a fuzzy edge.
G.
Variety and Creativity - Variety in sign design should be encouraged. Most businesses choosing to locate in Old Town, particularly in the Old Town Center, are small family-owned enterprises each with their own personalized way of operating. This social context offers the community an opportunity to develop signs that are home-grown and unique. Quality and craftsmanship should be a part of every sign in Old Town. Using a symbol for a sign is encouraged. Symbols add interest to the street, can be read quickly, and are remembered better than written words.
H.
Sign Quality - Business signage can create a potential customer's first impression and should incorporate the same level of care and quality found inside the business. A quality sign typically includes a balance of font styles and sizes, colors, graphics, durable materials, and supports the building architecture.
I.
Audience - Sign design should consider the viewer or "end user" of the sign. Larger signs are more appropriate for faster moving traffic, such as vehicles, where the time the viewer has to identify the sign, understand it, and react to it is shorter than pedestrian traffic. For vehicular-oriented signs, greater spacing between text and larger lettering is appropriate. For pedestrian-oriented signs, text may be smaller and still achieve legibility.
J.
Sign Hierarchy - Signs should work together in a hierarchical relationship. The larger, primary signs of a business such as a monument sign or a wall sign would most likely express the main idea of the business, including the name and perhaps an iconic graphic representing the industry or character of the place. Secondary signs, such as window and hanging signs, strengthen the overall theme offering supporting information. For example, a cafe may contain the name of the business on the wall sign and then in smaller lettering on the window, list items offered (e.g., coffee, tea, pastries, etc.). In this way, the information is organized in the same format it is processed by the viewer: first locating the destination, then selecting options at that location. Duplicating information on the same facade does not utilize the allowable sign area to its full potential and is discouraged in Old Town.
EXAMPLE OF INFORMATION HIERARCHY ON BUILDING
K.
Historic Context - Traditionally, a variety of signs existed within the Old Town District:
1.
Small, freestanding signs mounted on a pole or post; located near the sidewalk where the primary structure or business was set back from the street (e.g., an area with residential character), and printed on both sides.
2.
Medium-sized, square or rectangular-shaped signs that projected from the building above the awnings or canopies, printed on both sides.
3.
Small horizontally-oriented rectangular signs that protruded from the building below the awnings or canopies but above pedestrians' heads, printed on both sides.
4.
Medium to large, horizontally oriented rectangular signs attached flat against the building, above and/or below the awnings, printed on one side only.
5.
Window signs, painted on glass, used at the street level and on upper floors.
EXAMPLE OF A HANGING SIGN
L.
Signs that were historically mounted on a building's exterior advertised the primary business or service. Typically, this use occupied a street-level space and sometimes upper floors as well. In the case of a large structure that included several businesses on upper floors, the name of the building itself was displayed on an exterior sign and tenants relied on a directory placed at the street level. Signs were designed to fit within architectural features and in many cases, were mounted flush above the storefront, just over moldings. Others were located between columns or centered in "panels" on a building face. This method enabled the viewer to see the design and character of individual structures. Generally, signs allowed in Old Town fall into one of three categories: primary, secondary, and temporary.
1.
A primary sign represents the owner's largest sign expense and is likely the most important of the sign types. Only one primary sign is allowed per business, per building.
2.
Secondary signs are utilized in addition to the primary building sign and generally tied to an architectural feature. Typically, a secondary sign is an awning, projecting sign or window sign. The secondary sign is generally intended to capture the attention of a pedestrian walking on the sidewalk, while the primary sign's audience is typically driving past in a vehicle.
3.
Tertiary signs are also intended for pedestrian view and may consist of hanging signs, sandwich boards, or restaurant menu cases. These signs are allowed for each tenant of a building.
A.
Awning, Canopy, or Marquee Signs - Awning and canopy structures should be of a visually uniform style on a building. For example, it would be inappropriate to have metal canopies, canvas awnings, and bull nose-style awnings on the same facade or along two facades sharing a corner. However, different styles of awning or canopy structures could be located on opposite facades where they cannot be seen at the same time.
B.
Wall Signs - In many cases, turn-of-the century building types common in Lewisville have a sign band. This is the ideal location for the primary building sign. The sign band is typically located above the transom and below the second-floor windows. When utilizing the sign band as the sign placement location, it is important to respect the borders. The sign should not overlap or crowd the top, bottom, or ends of the sign band. When feasible, place a wall sign so that it aligns with others on the block.
C.
Window Signs and Displays - While window displays are not reviewed by the OTDRC, their use is very important to retailers. The attractiveness of a display is likely the highest contributing factor to whether or not a pedestrian will enter a store, and its design should be carefully planned.
The OTDRC does review and regulate signs within a store that are obviously intended to be viewed through the window.
Use of reflective, tinted, or coated glass is not appropriate for windows and doors of ground floor commercial buildings in Old Town. Additionally, window coverings should not be used to obscure transparency.
EXAMPLE OF A WINDOW DISPLAY
D.
Hanging Signs - A small hanging sign may be easier for a pedestrian to read than other sign types, and is encouraged. Hanging signs should be located near the business entrance, just above the door or to the side of it. A hanging sign should be mounted perpendicular with the building facade.
EXAMPLE OF A HANGING SIGN
E.
Projecting Signs - Projecting signs should be larger than hanging signs, mounted higher, and centered on the facade or positioned at the corner of a building. For buildings located at a street intersection, a projecting sign not exceeding 30 square feet may be considered at the corner facing the street intersection, provided there are no projecting signs on the building facades facing the intersecting streets.
EXAMPLE OF A PROJECTING SIGN
F.
Multi-Tenant Wall Signs - Where several businesses share a building, the signs should be coordinated. If several smaller signs are used, they should be located in harmony with the building architecture, taking into account bay spacing, windows, or other elements that establish an architectural rhythm. Use similar forms or backgrounds for the signs to tie them together visually and make them easier to read. Consistency among the signs should be balanced with sign originality to maintain legibility and character.
G.
Low-Profile/Monument Signs - Low-profile/monument signs should match the architectural style and material of buildings on the same lot.
EXAMPLE OF A MULTI-TENANT BUILDING
EXAMPLE OF A LOW-PROFILE/MONUMENT SIGN
APPENDICES
The IH-35E Corridor Overlay District is defined as all land located within the area bounded by the following: Beginning at the southwest corner of the intersection of North Stemmons Freeway (IH-35E) and North Garden Ridge Boulevard, running westerly along the south right-of-way line of North Garden Ridge Boulevard to the northwest corner of a 3.221-acre tract of land out of the F. Pierce Survey, Abstract No. 1016 conveyed to IH-35 & Garden Ridge Acquisitions, LP, then southerly and easterly along the western and southern boundaries of said IH-35 & Garden Ridge Acquisitions, LP tract to the west right-of-way line of North Stemmons Freeway, (IH-35E), then southerly along the west right-of-way line of North Stemmons Freeway (IH-35E) and crossing Bogard Lane to the southeast corner of the intersection of Bogard Lane and McGee Lane, then southerly along the east right-of-way line of McGee Lane to the northeast corner of the intersection of McGee Lane and the KCS Railroad, then easterly along the north right-of-way line of the KCS Railroad to the northeast corner of the intersection of the KCS Railroad and North Summit Avenue, then southerly along the east right-of-way line of North Summit Avenue to the northwest corner of Lot 1, Block H, Valley Ridge Residential Addition, then easterly along the north boundaries of Lot 1, Block H, Valley Ridge Residential Addition and Lot 3, Block I, Valley Ridge Business Park West Phase 9 to the west right-of-way line of North Stemmons Freeway (IH-35E), then southerly along the east boundary and westerly along the south boundary of Lot 3, Block I, Valley Ridge Business Park West Phase 9, then westerly along the south boundary of Lot 1, Block H, Valley Ridge Residential Addition to the north right-of-way line of College Parkway, then crossing the right-of-way College Parkway in a southwesterly direction to the eastern corner of Lot 1, Block A, Parkway Estates Addition, then in a southwesterly direction along the eastern and southern boundaries of Lot 1, Block A, Parkway Estates Addition to the southeast corner of a drainage right-of-way dedicated on the final plat of Fireside Village Addition, then westward along the southern boundary of said drainage right-of-way to the eastern right-of-way line of North Summit Avenue, then southward along the east right-of-way line of North Summit Avenue crossing West Main Street and continuing southerly along the east right-of-way line of Surf Street to the southwest corner of Lot 3, Block B, Harbor Heights, then eastward along the south boundary of Lot 3, Block B, Harbor Heights to the southeast corner of said lot, then northward along the east boundary of Lots 3, 2, and 1 A, Block B, Harbor Heights to the southwest corner of Lot 6 (PT), Valley Square, then easterly along the south boundary of Lots 6 (PT), 3 and 2, Valley Square to a point being the intersection of the south boundary of Lot 2, Valley Square and the northward extension of the western boundary of Lot 5, Block G, Quailcrest, then south across the public alley to the northwest corner of Lot 5, Block G, Quailcrest and continuing southerly along the west boundaries of Lots 5, 4B, 3, 2 and 1, Block G, Quailcrest to the north right-of-way line of West Purnell Street, then east along the north right-of-way line of West Purnell Street to the west right-of-way line of South Stemmons Freeway (IH-35E), then southeasterly along the west right-of-way line of South Stemmons Freeway (IH-35E) to the northwest corner of a 0.9759-acre tract of land out of the J. Sutton Survey, Abstract No. 1155 conveyed to Neville Texas Investments, LLC, then south along the west boundary of said Neville Texas Investments LLC tract and continuing south along the west boundary of a 4.0839-acre tract and an 8.141-acre tract, both out of the J. Sutton Survey, Abstract No. 1155 conveyed to AVB Ltd, to the north right-of-way line of Fox Avenue, then in a southeasterly direction across the Fox Avenue right-of-way to the northwest corner of Lot 1, Block A, Fox Haven Addition, then south and easterly along the west boundary and south boundary of Lot 1, Block A, Fox Haven Addition to the west boundary of Lot 6R, Block A, Fox-IH35E Addition, then southeasterly, east, and northeasterly along the west, south and southeast boundaries of Lot 6R, Block A, Fox-IH35E Addition to the west right-of-way line of South Stemmons Freeway (IH-35E), then southeasterly along the west right-of-way line of South Stemmons Freeway (IH-35E) to the north-most corner of Lot 3 (PT), Block A, Lakeland Plaza Addition, then southwesterly and southerly along the northwest and west boundaries of Lots 3 (PT) and 1 (PT), Block A, Lakeland Plaza Addition to the northwest corner of Lot 1, Block A, Peppermint Addition, then south along the west boundary of Lot 1, Block A, Peppermint Addition to the north right-of-way line of Oakwood Lane, then easterly, southerly and easterly along the north, east and north right-of-way lines (following curves) of Oakwood Lane to the east right-of-way line of SH 121 Business, then south along the east right-of-way line of SH 121 Business to the southwest corner of Lot 1, Block A, Rider Addition, then east along the south boundaries of Lot 1, Block A, Rider Addition and Lot 1R, Block A, Bankston Nissan Addition to the west boundary of Lot 1, Block A, Lewisville Mitsubishi Addition, then south along the west boundaries of Lot 1, Block A, Lewisville Mitsubishi Addition and Lot 1, Block A, Toyota of Lewisville to the southwest corner of Lot 1, Block A, Toyota of Lewisville, then east along the south boundary of Lot 1, Block A, Toyota of Lewisville to the northwest corner of Lot 1 A, Block C, Timber Creek Square Phase I, then south along the west boundary of Lot 1 A, Block C, Timber Creek Square Phase I to the northeast right-of-way line of East Southwest Parkway, then southeasterly along the northeast right-of-way line of East Southwest Parkway to the south right-of-way line of East Corporate Drive, then southwesterly along the south right-of-way line of East Corporate Drive to the north most corner of Lot 2, Block C, Timber Creek Square Phase 2, then southeasterly along the northeast boundary of Lot 2, Block C, Timber Creek Square Phase 2 to the northwest corner of Lot 6, Block A, Vista Ridge Pointe Addition, then south along the west boundaries of Lot 6, Block A, Vista Ridge Pointe Addition and Lots 2 and 1A, Block B, Vista Ridge Village Addition Phase 3 to the north right-of-way line of Oakbend Drive, then in a southeasterly direction across the Oakbend Drive right-of-way to the northwest corner of Lot 1, Block A, Oakbend and Rockbrook Addition, then south and east along the west and south boundaries of Lot 1, Block A, Oakbend and Rockbrook Addition to the west boundary of Lot 4, Block A, Vista Ridge Village Addition Phase 2, then south along the west boundaries of Lots 4, 3 and 2, Block A, Vista Ridge Village Addition Phase 2 to the north right-of-way of East Round Grove (FM 3040), then east along the north right-of-way line of Round Grove Road (FM 3040) to the east right-of-way line of Mac Arthur Boulevard, then southerly along the east right-of-way line of MacArthur Boulevard to the north right-of-way line of SH 121, then easterly along the north right-of-way line of SH 121 to the east right-of-way line of Lake Vista Drive, then southerly and easterly along the east and north right-of-way line of Lake Vista Drive to the south most corner of Lot 1RA, Block L, Vista Ridge to the southwest corner of a 38.0408-acre tract of land out of the McKinney-Williams Survey, Abstract No. 936 conveyed to Dallas Gun Club, then east along the south boundary of said Dallas Gun Club tract and following the City of Lewisville corporate limit line along the south boundary of a 2.2-acre tract of land out of the McKinney-Williams Survey, Abstract No. 936 and conveyed to Denton County Levee Improvement District No. 1 and continuing east and following the City of Lewisville corporate limit line along the south boundary of said Dallas Gun Club tract and continuing east following the City of Lewisville corporate limit line along the south boundary of a 5.8-acre tract of land out of the McKinney-Williams Survey, Abstract No. 936 conveyed to Denton County Levee Improvement District No. 1 and continuing east following the City of Lewisville corporate limit line along the south boundary of a 38.0408-acre tract of land out of the McKinney-Williams Survey, Abstract No. 936 conveyed to Dallas Gun Club to the west most southwest corner of Lot 6R, Block A, I-35 Boat City Addition, then east, south, easterly, northerly, west and north (following curves) along the south, west, south, east, north and east boundaries of Lot 6R, Block A, I-35 Boat City Addition to south corner of Lot 5, Block A, I-35 Boat City Addition, then northeasterly along the southeastern boundary of Lot 5, Block A, I-35 Boat City Addition to the west right-of-way line of South Stemmons Freeway (I-35E), then following the City of Lewisville corporate limit line northeasterly across the South Stemmons Freeway (IH-35E) right-of-way to the east right-of-way line of South Stemmons Freeway (IH-35E) then following the City of Lewisville corporate limit line northwesterly to the southeast corner of a 14.029-acre tract of land out of the McKinney-Williams Survey, Abstract No. 936 conveyed to City of Carrollton, then northwesterly and east following the City of Lewisville corporate limit line along the southwest, west and north boundaries of said City of Carrollton tract to the west boundary of 109.6-acre tract of land out of the J. Chowning Survey, Abstract No. 242 conveyed to City of Carrollton, then north following the City of Lewisville corporate limit line along the west boundary of said City of Carrollton tract to the west right-of-way line of the Dallas Area Rapid Transit (DART) railway, then northerly along the west right-of-way line of the Dallas Area Rapid Transit (DART) railway, crossing the SH 121 right-of-way, to the north right-of-way line of SH 121, then southwesterly along the north right-of-way line of SH 121 to the southeast corner of Lot 4 (PT), Block A, Arthur James Addition, then northwesterly along the northeastern boundary of Lots 4 (PT), 3 and 2, Block A, Arthur James Addition to the east right-of-way line of Arthur's Lane, then northwesterly across the Arthur's Lane right-of-way to northeast corner of Lot 8R, Block H, Lakepointe Phase 5, then northwesterly along the northeast boundary of Lots 8R, 7B (PT) and 7A (PT), Block H, Lakepointe Phase 5 to the southeast corner of Lot 3, Block H, Lakepointe Phase 1, then northwesterly and northeasterly along the southwest and northwest boundaries of Lot 3, Block H, Lakepointe Phase 1 to the northmost corner of Lot 3, Block H, Lakepointe Phase 1, then in a northeasterly direction across Lot 3, Block G, Lakepointe Phase 3 to the southeast corner of Lot 2R-1, Block G, Lakepointe Phase 3, then northeasterly along the southeast boundaries of Lots 2R-1 and 1 R-1 B, Block G, Lakepointe Phase 3 and continuing in a straight line across the right-of-way of Lakeside Circle to the north right-of-way line of Lakeside Circle, then northwesterly along the north right-of-way line of Lakeside Circle to the south corner of Lot 1R-2A, Block E, Lakepointe Phase 3, then northeasterly along the southeast boundaries of Lots 1R-2A and 1R-3, Block E, Lakepointe Phase 3 and Lots 1, 2R1, 3R1 and 4, Block A, Hebron Lakepointe Addition to the south right-of-way line of Hebron Parkway, then crossing the right-of-way of Hebron Parkway to the east corner of Lots 3B and 3C, Block D, Lakepointe Phase 3, then northwesterly and southwesterly along the northeast boundary of Lots 3B and 3C, Block D, Lakepointe, Phase 3 and the northeast and northwest boundaries of Lots 3A (E PT) and 3A (W PT), Block D, Lakepointe Phase 3 to the northeast right-of-way line of Lakepointe Drive, then crossing the right-of-way of Lakepointe Drive to the southwest right-of-way line of Lakepointe Drive, then northwesterly along the southwest right-of-way line of Lakepointe Drive to the south corner of the intersection of Lakepointe Drive and Waters Ridge Drive, then southwesterly along the southeast right-of-way line of Waters Ridge Drive to the west corner of Lot 7, Block A, Lakepointe West, then northwesterly across the right-of-way Waters Ridge Drive to the south corner of Lot 4A, Block B, Lakepointe Phase 2, then northwesterly, west and north along the southwest, south, and west boundaries of Lot 4A, Block B, Lakepointe Phase 2 to the south right-of-way line of Lakepointe Drive, then northwesterly along the south and west right-of-way line of Lakepointe Drive and crossing East Corporate Drive and continuing northwesterly along the southwest right-of-way line of Lakepointe Drive to a point being the intersection of the south right-of-way line of Lakepointe Drive and the southerly extension of the west boundary of Lot 5, Block A, Xerox Facility Addition, then north across the right-of-way of Lakepointe Drive to the southwest corner of Lot 5, Block A, Xerox Facility Addition, then north along the west boundary of Lot 5, Block A, Xerox Facility Addition to the south right-of-way line of Bennett Lane, then northeasterly across the Bennett Lane right-of-way to the southeast corner of a 0.963-acre tract of land out of the E. Aday Survey, Abstract No. 11 conveyed to City of Lewisville, then north to the northeast corner of said City of Lewisville tract then west along the north boundaries of said City of Lewisville tract; and continuing west, north and west along the north boundaries of a 1.926-acre tract of land out of the E. Aday Survey, Abstract No. 11 conveyed to City of Lewisville; Lot 1, Block A, Bennett Park Center; Lot 1, Block A, Octavi Hernandez Addition; a 0.75-acre tract of land out of the E. Aday Survey, Abstract No. 11 conveyed to Noblitt Living Trust; Lot 1, Block A, Tyson Estates; a 0.959-acre tract of land out of the E. Aday Survey, Abstract No. 11 conveyed to E&H Contractors; a 3.0-acre tract of land out of the E. Aday Survey, Abstract No. 11 conveyed to Rafael Corona; and a 3.027-acre tract of out of the E. Aday Survey, Abstract No. 11 conveyed to Nancy A. Stevens; to the east right-of-way line of Yates Street, then northerly along the east right-of-way line of Yates Street to the northwest corner of Lot 1, Block A, WRN Creekside Development Addition, then east, north and west along the south, east and north boundaries of a 57.3366-acre tract of land out of the J.W. King Survey, Abstract No. 695 conveyed to AMC Northwood, LLC, to the southwest corner of Lot 2, Block A, DCTA Maintenance Facility Addition, then north and east along the west and north boundaries of Lot 2, Block A, DCTA Maintenance Facility Addition to the southeast corner of 3R, Block A, Zander Place Addition, then north and northwesterly along the east and northeast boundaries of Lot 3R, Block A, Zander Place Addition to the southeast right-of-way line of SH 121 Business, then continuing in a straight line northwest across the SH 121 Business right-of-way to the northwest right-of-way line of SH 121 Business, then southwesterly along the northwest right-of-way line of SH 121 Business to the west corner of the intersection of SH 121 Business and McKenzie Street rights-of-way, then west along the south right-of-way line of McKenzie Street to the northeast corner of Lot 7, Block 10, McKenzie-Hembry Addition, then southerly, westerly and southerly along the east boundary of Lot 7, Block 10, McKenzie-Hembry Addition to the northeast corner of a 1.45-acre tract of land out of the J.W. King Survey, Abstract No. 695 conveyed to City of Lewisville, then southwesterly along the southeast boundaries of said City of Lewisville tract to the north-most corner of a 2.44-acre tract of land out of the J.W. King Survey, Abstract No. 695 conveyed to City of Lewisville, then southeasterly, southwesterly, westerly and northwesterly along the northeast, southeast, south and southwest boundaries of said City of Lewisville tract to the east right-of-way line of South Mill Street, then north along the east right-of-way line of South Mill Street to the northeast corner of South Mill Street and Mesquite Street, then westerly across the South Mill Street right-of-way to the northeast corner of a 0.482-acre tract of land out of the E. Pickett Survey, Abstract No. 1014 conveyed to Lebz Brothers Inv. LLC, then west and south along the north and west boundaries of said Lebz Brothers Inv. LLC tract to the north right-of-way line of Yale Avenue, then southerly across the Yale Avenue right-of-way to the northwest corner of Lot 17, Block A, Termin, then south along the west boundaries of Lot 17, Block A, Termin and continuing southerly along the west boundary of a 0.45-acre tract of land out of the E. Pickett Survey, Abstract No. 1014 conveyed to Reid M. Anderson to the north right-of-way line of Harvard Avenue, then south across the Harvard Avenue right-of-way to the northwest corner of a 0.441-acre tract of land out of the E. Pickett Survey, Abstract No. 1014 conveyed to Bruce Properties LLC, then south along the west boundary of said Bruce Properties LLC tract to the north boundary of Lot 1, Block A, Batterton Addition, then west along the north boundaries of Lot 1, Block A, Batterton Addition and continuing west along the north boundaries of Lot 2, Block B, Huffines Dodge Addition, and a 3.7969-acre tract of land out of the E. Pickett Survey, Abstract No. 1014 conveyed to 1090 St. Charles Property, LLC, to the east right-of-way line of South Charles Street, then west across the South Charles Street right-of-way to the west right-of-way line of South Charles Street, then south along the west right-of-way line of South Charles Street to the north corner of a 0.711-acre tract of land out of the E. Pickett Survey, Abstract No. 1014 conveyed to Michael & Hiyasmin Noyes, then southwesterly along the northwest boundary of said Noyes tract to the east corner of Lot 9, Block B, Lakeland Terrace 1, then northwesterly along the northeast boundary of Lot 9, Block B, Lakeland Terrace 1 to the north corner of Lot 9, Block B, Lakeland Terrace 1, then northwesterly across the Lake Shore Drive right-of-way to the west right-of-way line of Lake Shore Drive, then north along the west right-of-way line of Lake Shore Drive to the southwest corner of Lake Shore Drive and Harbor Drive, then westerly, northwesterly and northerly along the south, southwest and west right-of-way line of Harbor Drive to the southwest corner of Harbor Drive and Lake Haven Drive, then north across the Lake Haven Drive right-of-way to the north right-of-way line of Lake Haven Drive, then northwesterly along the northeast right-of-way line of Lake Haven Drive to the east corner of Lake Haven Drive and Fox Avenue, then north-easterly across the right-of-way of Fox Avenue to the southeast corner of Lot 9, Block 4, James Degan, then westerly along the south boundaries of Lots 9, 8, 7, 6, 5, 4, 3 and 2 (PT), Block 4 James Degan to the northeast right-of-way line of South Stemmons Freeway (IH-35E), then northwesterly along the northeast right-of-way line of South Stemmons Freeway (IH-35E) to the northeast corner of South Stemmons Freeway (IH-35E) and West Purnell Street, then east along the north right-of-way line of West Purnell Street to the northwest corner of West Purnell Street and South Edna Avenue, then north along the west right-of-way line of South Edna Avenue to the southwest corner of South Edna Avenue and West Main Street, then north across the West Main Street right-of-way to the north right-of-way line of West Main Street, then west along the north right-of-way line of West Main Street to the northwest corner of West Main Street and Degan Avenue, then north along the west right-of-way line of Degan Avenue to the northwest corner of Degan Avenue and West College Street, then west along the north right-of-way line of West College Street to the northwest corner of Harn Drive, then north along the west right-of-way line of Harn Drive to the southwest corner of Harn Drive and Millican Drive, then north across the Millican Drive right-of-way to the north right-of-way line of Millican Drive, then east along the north right-of-way line of Millican Drive to the southwest corner of Lot 18, Block E, Lewisville Park Estates, then north along the west boundaries of Lots 18, 17, 16, 15, 14, 13, 12, 11, 10, 9, 8, 7, 6, 5, 4, 3, 2 and 1, Block E and Lots 1-5, Block A Lewisville Park Estates to the northwest corner of Lot 5, Block A, Lewisville Park Estates, then east along the north boundaries of Lots 5-12, Block A, Lewisville Park Estates to the northeast corner of Lot 12, Block A, Lewisville Park Estates, then northeasterly across two drainage right-of-way lots to the southeast corner of Lot 3A, Block A, Valley Ridge Business Park East, then north along the east boundary of Lot 3A, Block A, Valley Ridge Business Park East to the northeast corner of Lot 3A, Block A, Valley Ridge Business Park East, then northwesterly across the Valley Ridge Boulevard right-of-way to the southeast corner of Lot 3, Block B, Valley Ridge Business Park East, then north along the east boundary of Lot 3, Block B, Valley Ridge Business Park East to the northeast corner of Lot 3, Block B, Valley Ridge Business Park East, then westerly along the south right-of-way line of the KCS railway to east corner of Lot 1, Block A, May Trailer Sales Addition, then northwesterly across the KCS Railway right-of-way to the southeast corner of Lot 3, Block A, Butler Addition, then north along the east boundaries of Lot 3, Block A, Butler Addition and Lot 1, Block A, Denton County Addition to the south right-of-way line of West Jones Street, then northerly across the West Jones Street right-of-way to the southeast corner of Lot 2R1, Block A, Fairway Business Park, then north along the east boundary and west along the north boundary of Lot 2R1, Block A, Fairway Business Park to the east boundary of Lot 1, Block A, Phil Dill Jr Addition, then north along the east boundaries of Lot 1, Block A, Phil Dill Jr Addition and Lot 2, Block A Lewisville Boat Storage Addition (PT) to the southwest right-of-way line of the Dallas Area Rapid Transit (DART) railway, then northwesterly along the southwest Dallas Area Rapid Transit (DART) railway right-of-way line to the northwest corner of Lot 2, Block A, Franklin Street Addition, then northeasterly across the Dallas Area Rapid Transit (DART) railway right-of-way to the southeast corner of Lot 1, Block A, CB Green Addition, then north along the east boundary of Lot 1, Block A, CB Green Addition to the south right-of-way line of Lake Park Road, then north across the Lake Park Road right-of-way to the north right-of-way line of Lake Park Road, then west along the north right-of-way line of Lake Park Road to the southeast corner of a 3.2258-acre tract of land out of the P.K. Waggoner Survey, Abstract No. 1342 conveyed to the James C. Holmes Family Trust, then north along the east boundary of said James C. Holmes Family Trust tract to southeast corner of Lot 2, Block A, Callmark Addition, then north and westerly along the east and north boundaries of Lot 2, Block A, Callmark Addition and continuing westerly along the north boundary of Lot 1, Block A, Callmark Addition to the east right-of-way line of Oakridge Boulevard, then northwesterly across the Oakridge Boulevard right-of-way to the west right-of-way line of Oakridge Boulevard, then south along the west right-of-way line of Oakridge Boulevard to the northeast corner of Lot 30A, Block A, Oakridge Park Estates Section G, then northwest, west and south along the northeast, north and west boundaries of Lot 30A, Block A, Oakridge Park Estates Section G to the northeast right-of-way line of the Dallas Area Rapid Transit (DART) railway, then crossing the Dallas Area Rapid Transit (DART) railway right-of-way in a southwesterly direction and continuing northwesterly along the southwest right-of-way line of the Dallas Area Rapid Transit (DART) railway to the southwest corner of the Dallas Area Rapid Transit (DART) railway right-of-way and North Garden Ridge Boulevard, then westerly across the North Stemmons Freeway (IH-35E) right-of-way to the point of beginning.
City of Lewisville IH-35E Corridor Redevelopment Plan - Appendix
The following corridor character principles are intended to provide a thematic vision for public infrastructure along the corridor and its subareas. This Section is organized to present intent statements for spatial elements contained within the corridor, followed by design principles for each of the character subareas. The principles should be used to provide guidance during the decision-making process when evaluating detailed concepts for proposed treatments within the corridor.
These principles were used in the development of the IH-35E Corridor Identity Plan, which adopted the three (3) character zone designations and determined the appropriate limits for each within the corridor. The physical design elements for the corridor were then developed in terms of the aesthetic character which was then applied to typical interchange locations along the corridor. A vocabulary of common elements was established for the entire corridor, including lighting, banner poles, wayfinding, plantings, cross street gateway identifiers, pedestrian protection barriers, decorative crosswalk pavement and bridge abutment wall treatments. Unique character zone defining elements were developed for pedestrian paving patterns, custom retaining wall graphics, pedestrian protection wall forms and textures, and planting palette.
The Corridor Experience
The eight-mile drive along the IH-35E corridor through Lewisville provides a range of experiences that can be interpreted in the physical design of the spatial elements throughout the corridor. This corridor contains modulation through topography, compression of the right-of-way in areas where the highway is depressed, and openness as the highway crests to expansive views of the region. On a smaller scale, the corridor passes under bridges which will serve as landmarks, and along a variety of walled conditions. Through the journey, the corridor also passes along watercourses and open spaces that are amenities to local neighborhoods. These experiences provide inspiration that can inform the design of elements at the scale of the entire corridor and at smaller neighborhood scales.
Unifying Character Theme
One of the most impressive natural resources along this corridor is Lake Lewisville. The lake is a psychological and physical place of respite and recreation, and is a regional attraction in the Dallas metropolitan area. During work sessions with the project's Advisory Committee, the lake was identified as the most recognizable asset to the City and the theme of water was proposed as a unifying theme for the corridor. The purpose of providing a unifying theme is to provide a consistent brand for the City and to inform drivers of the range of experiences and opportunities contained in this corridor.
Subarea Character Themes
Due to the length of the corridor, the range of experiences it offers, and the character of its adjacent communities, subarea themes are proposed for the north, central and south portions of the corridor. Subarea themes will help to break down scale of the corridor and provide neighborhood identification.
North-Water
Water should be a defining characteristic in the north section and used as a unifying
theme.
The subarea themes for the north section of the corridor are water and recreation. Combined with the vacant parcels available for redevelopment along the corridor, the water theme could serve as an organizing element for future development. Lifestyle oriented development could reflect the unique attributes of living, working and recreating around water. The design elements along this northern reach need to come together to draw visitors off the highway thereby capturing greater market share.
•
Gateways and landmarks should be focused at Garden Ridge Boulevard and Valley Ridge Boulevard, both primary entrances into the Lake area. Higher density nodal development should be focused around these gateways to draw in visitors.
•
Water should be a defining characteristic in the treatment of walls, bridges, lighting and art. Species such as Sun Fish and Large Mouth Bass could be utilized as relief along retaining walls to remind visitors of the Lake Lewisville recreational amenity.
Central-Urban
The central section of the corridor is tied to Old Town Lewisville
The theme of the Central section of the corridor ties to historic Old Town Lewisville. Though located approximately one mile from the center of Old Town, IH-35E currently has little relationship to Old Town and the medical uses in between. Design elements should be consistent with the historic architecture of Old Town.
•
Gateways and landmarks need to be located at both South Mill Street and West Main Street to signify entrance into the historic heart of the community, tying newer land uses along the highway with the history of Old Town.
•
Design treatments for walls, bridges, lighting, building architecture and art should emphasize the area's history. Brick and warm materials need to reflect the historic nature of Old Town.
South-Park
Hebron Parkway could benefit from a gateway in the southern section.
The southern section of the IH-35E corridor will remain an important center of retail, hospitality and corporate office space. The theme for this area should focus on its location as a gateway and destination, and capitalize on its unique assets, such as Timber Creek.
•
A gateway is needed at Hebron Parkway to distinguish this area as a center of activity and connectivity between uses east and west of the highway. This bridge could exhibit a unique architectural style, such as an arched truss bridge. Tall lighted elements along this bridge could denote this as a special area, and create a nighttime place, while preserving views north and south during the day.
•
Due to the complexity of the intersection of SH-121 to allow for all necessary vehicle movements, this area will contain a high percentage of retaining walls. Special attention will be required to reduce the impact of the walls through a variety of surface treatments, including massing breaks, color changes, and texture variations. Additional surface treatments could include the incorporation of public art to display shallow relief images with colored material.
Unifying character theme spatial elements
The experience and character of the corridor will be communicated through the design and treatment of its spatial elements. Following are design principles for the primary spatial elements that will be experienced throughout the corridor. Each of the spatial elements described below should be designed to complement the unifying theme and respective subarea themes along the IH-35E corridor.
Each spatial element is defined below. Intent statements describe how each element is characterized in the corridor. Principles are included that should be incorporated in the design of each element.
A.
Landmarks and gateways take the form of natural features and design elements and include bridges, intersection treatments, development form, and significant open space areas.
Intents:
•
Landmarks identify and brand the City of Lewisville and its neighborhoods.
•
Landmarks form a mental map for wayfinding purposes and can be created through natural or manmade means.
•
Gateways identify particular areas within the City or particular neighborhoods.
Principles:
A1.
To achieve a consistent treatment where gateways are provided, gateways should be designed as elements that either span across a highway or path, or are symmetrical treatments located on each side of the highway right-of-way or path, and require users to either pass under or pass through.
A2.
To promote the diversity that exists in Lewisville, landmark locations are identified within the primary catalysts of Subareas 2, 5 and 7.
A3.
To diversify community image, landmark and gateway treatments should contain a minimum of three (3) exterior materials.
A4.
To promote visual clarity, gateway treatments should be a minimum of eight feet (8') tall at any dimension from the ground or base condition.
A5.
To incorporate nodal development, landmarks and gateway treatments should be integrated with intersection design at identified nodes.
B.
Development Patterns describe how buildings, roads and open space are organized together in a particular area. These patterns contribute significantly to the character of the highway.
Intents:
•
Development is composed of compact centers, or nodes, of mixed use development.
•
Environments are designed to be comfortable to pedestrians and bicyclists.
•
Networks of transportation modes interconnect development and open space.
•
Land use and transportation are intricately linked to create active, engaging places.
Principles:
B1.
To reduce sprawl, create development nodes that capture a higher number of vehicle trips accessing the corridor than traditional development.
B2.
To promote active places, create centers of mixed-use developments near a variety of residential densities.
B3.
To promote active places, site design for major projects should allow for increased densities over time.
B4.
To reduce the occurrence of strip development, new development should be nodal in character and concentrate development along the highway at planned areas that are separated by open space.
B5.
To leverage transportation access, the tallest and densest development patterns should occur within 700 feet to one-quarter mile radius of planned nodes. Most nodes are situated at interchanges.
B6.
To improve development character, parking locations should be less prominent and located to the rear of buildings or in parking structures.
B7.
To promote active streets, pedestrian-oriented uses should be located on ground floors of buildings.
B8.
To facilitate more active places, sidewalks should be wider in planned development nodes than in other lower density areas.
B9.
To provide amenities for pedestrians, sidewalks should incorporate street trees, benches, kiosks and plazas.
B10.
To promote active streets, auto-oriented uses, including service stations and drive through facilities should be discouraged within one-quarter mile radius of planned nodes.
B11.
To provide a pedestrian-friendly street network, street block sizes should not exceed 600,000 square feet.
C.
Right-of-way treatments include bridges, walls, fencing, landscaping and lighting.
Intents:
•
Right-of-way treatments embody the unifying and subarea themes described in this plan.
•
Aesthetic treatments are visibly consistent for public and private lands when viewed from the corridor.
Principles:
C1.
To improve aesthetic quality, bridges should contain a minimum of three (3) exterior materials, and include accent lighting in addition to standard lighting for safety.
C2.
To improve aesthetic quality, no chain link fencing is allowed within direct view of the corridor or fifty feet (50') outside the state owned right-of-way.
C3.
To improve the aesthetic quality, fencing treatments should incorporate live, drought-tolerant vegetation, where direct transparency for safety is not required.
C4.
To improve the aesthetic quality, landscape treatments, including flowering plants should be provided adjacent to identified gateways and landmark areas.
C5.
To reduce a canyon effect in the corridor, vertical surfaces of walls should not exceed twenty feet (20') without a twelve-inch (12") minimum horizontal break.
C6.
To break down the scale of walls, patterns should be created that are a maximum of four feet (4') in any direction.
C7.
To promote a pedestrian-oriented environment, pedestrian routes should be buffered from fast-moving traffic and expanses of parking.
D.
Natural Spaces along the highway are primarily passive in form, and include open space, pedestrian pathways, waterways, wetlands and stormwater drainage areas.
Intents:
•
Natural spaces complement and separate areas of nodal development and enhance the natural surroundings.
•
Natural spaces represent interconnected systems and are organized to facilitate system-wide drainage.
•
View corridors provide expansive views out of the corridor and identify landmarks when appropriate.
Principles:
D1.
To facilitate pedestrian connectivity, natural spaces should create linear systems, particularly east-west along the corridor.
D2.
To maintain a sustainable landscape, only native plantings should be provided.
D3.
To promote expansive views, low plantings should be provided in open spaces designated to frame long views.
D4.
To improve water quality, native landscape materials should be utilized to provide primary filtration of stormwater prior to entering sewers.
E.
Access locations include the locations of curb cuts and intersections on frontage roads, arterial streets and intersections within the corridor.
Intents:
•
Frontage roads facilitate local circulation parallel to the highway and provide access to the local street system.
•
Local streets provide the majority of access to private property along the corridor.
Principles:
E1.
To promote access, street patterns should form an interconnected grid that simplifies access for all transportation modes.
E2.
To improve multi-modal circulation, bridges should include pedestrian paths and bicycle lanes.
E3.
To increase capacity of the frontage road system, curb cuts should be minimized.
F.
Nighttime treatments include the organization and design of safety lighting and accent lighting on spatial elements, including landmarks, key building and landscape treatments, bridge and wall treatments and open spaces.
Intents:
•
Corridor treatments should be designed for daytime and nighttime users.
•
Effect lighting attempts to replicate the daytime experience for nighttime users.
•
Lighting for safety is integrated with effect lighting and provides a consistent design theme.
Principles:
F1.
To improve the aesthetic quality, accent lighting should be included in right-of-way treatments.
F2.
To express the design theme in each subarea, safety lighting should be incorporated with effect lighting.
F3.
To promote walking during nighttime, pedestrian scaled lighting should be included on all walkways with one-quarter mile of defined nodes.
G.
Street design includes both traffic and pedestrian zones.
Intents:
•
The traffic zone encompasses vehicular and bicycle movements, and can also include medians, crosswalks and on-street parking.
•
The pedestrian zone includes all elements from the back of curb.
Principles: Traffic Zone
G1.
Vehicular lane width will vary based on the street type and traffic volume. On highways such as IH-35E, 12-foot lanes may be most appropriate. Arterials with heavier volumes of traffic may require 11- to 12-foot lanes. On local streets, 10- to 11-foot lanes are encouraged to help reduce speed and narrow the overall traffic zone width.
G2.
Bicycles may be accommodated either through a wider outside lane or through a striped bicycle lane. Bicycle lane widths should be between four (4) and six (6) feet. When placed adjacent to on-street parking, an additional one (1) to two (2) feet of bicycle lane should be provided.
G3.
Medians should provide refuge areas for pedestrians and include special planting, paving treatments, or public art installations at each end to create a visual amenity.
G4.
Crosswalks should include inset materials or textures, including brick pavers or stamped concrete which provides visual amenity and functional traffic calming for intersections.
G5.
On-street parking is typically eight (8) to ten (10) feet wide allowing for parallel parking adjacent to the vehicular lane. On-street parking is typically placed on corridors with lower speed limits and streets with active pedestrian and development to help calm traffic and serve surrounding land uses.
Principles: Pedestrian Zone
G6.
Sidewalks on frontage roads and arterial streets are encouraged to be detached from the curb and setback from the street a minimum of eight feet (8'). Sidewalk widths should be a minimum of six feet (6') and can exceed twelve (12') feet depending on planned pedestrian activity. Sidewalks on local streets should be a minimum of six feet (6') and either be attached or detached depending on other amenities provided.
G7.
Curb cuts should be subject to conditions specified by an access management strategy for arterial roads. Curb cuts are only encouraged at combined business entries and for parcels that cannot be accessed from a local road. Curb cuts on all streets should be designed to be as narrow as possible while providing for safe traffic movements and access.
G8.
Street trees are encouraged within the amenity zone. The trunk should be setback from the street a minimum of three feet (3') to provide a clear area from the street and to allow the canopy to mature.
G9.
Planter boxes can be located in the amenity area and provide a buffer along busy streets and create a more intimate pedestrian space. Planters can be seasonal or permanent.
G10.
Lighting along sidewalks should be provided to indicate safe pedestrian pathways. Pedestrian scale lighting can be incorporated with traffic lighting poles or provided as independent elements.
G11.
Benches/seating on arterials should be provided at bus stops and near intersections in green areas to provide an amenity for people waiting to cross the street or board transit. Additionally, seating is encouraged in green areas with access to public open space, or large parking areas.
G12.
Bus stops should provide overhead shelter from sun, snow and rain and provide side shelter from wind and rain. Side panels should provide a high degree of transparency and be clear of visual obstructions.
G13.
Bicycle racks along streets should be provided adjacent to active streets containing neighborhood serving businesses. When provided, racks should be located in the amenity zone.
City of Lewisville IH-35E Corridor Redevelopment Plan - Appendix

Great places are defined in large part by great streets. Jane Jacobs said it well:
"Streets and their sidewalks, the main public places of a City, are its most vital
organs."
These design guidelines are intended to enable the City to work together with the development and business communities in achieving the vision for IH-35E corridor. That vision includes four framework themes:
•
Revitalizing the corridor will require enhancing the established character through multiple public and private realm improvements.
•
Establishing memorable destinations will require creating authentic and diverse public places, while expanding the range of attractions and economic development opportunities that the corridor offers.
•
Integrating the neighborhoods will require a mix of infill housing and services for local neighbors.
•
Achieving a more accessible corridor will require improving the transportation system to minimize barriers and provide regional transportation alternatives.
The design guidelines are divided into two types: guidelines and standards. The Guidelines contained in this document are general statements describing ideal development along the corridor. The standards are basic requirements for any development or redevelopment along the IH-35E corridor. The use of these two types of statements is intended to give flexibility to the developer and/or applicant to respond and contribute to the corridor vision in advance of a submittal, to give the City of Lewisville a basis on which to make judgments so that its determinations are not arbitrary, and to give certainty to the City of Lewisville and its citizens that the corridor vision is met and that the quality described is maintained. The images in this Section reflect examples from across the country, which exemplify the written standards.
As time passes and the City and its partners in the public and private sector advance in achieving the corridor vision, conditions along the corridor will change. The standards will be added to and amended over time. The guidelines and standards serve as a tool to ensure that the corridor vision and quality of corridor redevelopment remains consistently high.
Authority
These Guidelines shall be approved as part of the IH-35E Corridor Redevelopment Plan according to the provisions of the General Development Ordinance.
Applicability and Review
The review process follows the approved development process as stipulated in the City of Lewisville's adopted General Development Ordinance (GDO). The required standards of the corridor design guidelines and standards are in addition to the specific requirements of the GDO. These guidelines and standards supersede all other city design guidelines except as noted.
A design review committee (DRC) should be established by the City for review of projects along the IH-35E corridor. This committee should be responsible for the controls governing the design guidelines and standards. This DRC should have the responsibility to review all development within the boundaries of the corridor overlay area. Review of engineering requirements such as drainage; utilities; police, fire, and emergency service access is the responsibility of city staff. The DRC would have the responsibility of reviewing all design outside of the right-of-way, while city staff has the responsibility to review the street's engineering, traffic functions, utility and public safety requirements. The DRC should be composed of both public and private individuals. Representatives of the private development community bring value in providing their perspective.
Amendments
These Guidelines may only be amended by City Council with a recommendation from the Planning Commission.
Format
The format of the following design guidelines consists of development conditions defined by design principle statements and design standards. Development conditions are described for Site Plan, Architecture, Landscape, and Signage. Guidelines describe the design intent for each listed condition and should be incorporated into design treatments of each listed condition. Standards describe the specific treatments that, if incorporated, require no further DRC review. However, if standards cannot be achieved due to outstanding conditions, the DRC may evaluate specific condition proposed treatments against the stated Guidelines. If the DRC approves the proposed treatments no further DRC review is required. Appeals may be made to the Planning Commission.
A.
SITE PLAN
A1.
Building orientation
Guidelines
A1.g1.
The front facades and main entries of buildings should be oriented toward streets and plazas.
A1.g2.
Building orientation should provide views of adjoining publicly accessible streets and open spaces in order to provide passive viewing for safety.
A1.g3.
Pedestrian activity should be encouraged through the incorporation of active uses such as retail, commercial and/or institutional uses at the ground level.
A1.g4.
Buildings should define the street or public open space.
A1.g5.
Buildings should be located to promote sun and sky exposure to public streets and plazas.
A1.g6.
Buildings should be sited to create active outdoor spaces where possible, such as outdoor restaurant seating where appropriate.
Standards
A1.s1.
Buildings shall line a street at the Right-of-Way or the build-to line to the greatest extent possible.
A1.s2.
Buildings shall use the full width of the lot for the primary structure and/or active outdoor space.
A2.
Access and driveways
Guidelines
A2.g1.
Access points, including alleys, and driveways should be located to promote the safe and efficient movement of vehicles, pedestrians and bicyclists.
A2.g2.
Uninterrupted pedestrian-ways should be maximized in order to improve walkability.
A2.g3.
The width of driveways and curb cuts should be minimized to reduce the overall impact of vehicular access across a sidewalk.
A2.g4.
Driveways and ramps to underground parking should be perpendicular or generally perpendicular to the street.
A2.g5.
Block frontages should have as few curb cuts as possible.
A2.g6.
Sharing of vehicle entries between two adjacent lots is strongly encouraged.
Standards
A2.s1.
Developments shall provide access for service vehicles via alleys or parking lots.
A3.
Parking lot and structure location
Guidelines
A3.g1.
Buildings should be located to minimize the visual impact of parked vehicles within lots and structures.
A3.g2.
Parking lot location should minimize the impact of parked vehicles on the continuity of active commercial, mixed use, and/or residential frontages.
A3.g3.
Parking lots and structures should be located to minimize the impact of vehicle noise and headlights from within parking lots and structures onto adjacent residential neighborhoods.
A3.g4.
Whenever possible, parking structures should be sited internally to the block so that parking structure street frontages are avoided. If internal siting is not feasible, then the parking structure should be oriented so that the shortest dimension fronts the street.
A3.g5.
If it is only feasible to orient the long dimension of a parking structure along a street, then the structure's street facade should exhibit the same high level of quality in its design, detailing and use of material as is provided in the adjoining commercial and/or mixed use buildings.
A3.g6.
Parking structures that are sited with exposed street frontage should orient the exposed frontage to commercial activities, rather than residential uses.
Standards
A3.s1.
Surface parking areas shall be located at the side or rear of buildings only.
A3.s2.
Parking structures with exposed street frontage shall not be oriented toward residential uses.
A4.
Utility location and screening
Guidelines
A4.g1.
Service areas and utility pedestals should be located to minimize the visual impact of service areas, refuse storage and mechanical/electrical equipment on streets, public open spaces and adjoining development.
A4.g2.
Utility appurtenances should be located behind the sidewalk and out of the sidewalk amenity zone wherever possible. Where it must be in the tree lawn or amenity zone, such equipment should be centered on the tree line and aligned with but no closer than 42 inches from the face of curb. This includes switch boxes, telephone pedestals, transformers, meters, irrigation, and similar equipment.
A4.g3.
The use of alleys is encouraged to locate all mechanical, electrical, and utility equipment to the extent possible.
Standards
A4.s1.
Service areas and refuse storage areas shall not front onto streets and public open spaces. Such areas shall be located to the rear or side of buildings, and screened from view from the street and/or public open space.
A4.s2.
Refuse storage and pick-up areas shall be combined with other service and loading areas.
Utility screening
A5.
Pedestrian access
Guidelines
A5.g1.
Pedestrian entries to buildings should promote security on a street or public open space through frequent points of access and sources of activity.
A5.g2.
In general, ground floor uses with exterior exposure should each have an individual public entry directly located on a public sidewalk along a street, or on a sidewalk or plaza leading directly to a street.
Standards
A5.s1.
Primary building entrances shall be oriented toward streets, parks or pedestrian plazas.
A5.s2.
Each block face shall have multiple building entries. A building occupying an entire city block shall include more than one building entrance along each block face.
A5.s3.
All secondary building entries shall be well lit and directly connected to the street.
B.
Architecture
B1.
Building Character
Guidelines
B1.g1.
Building character should be creative and within a visually comfortable and familiar environment.
B1.g2.
Buildings should be designed to provide human scale, interest, and variety while maintaining an overall sense of relationship with adjoining or nearby buildings.
B1.g3.
Art integrated into building facades or forms, and/or specially designed architectural ornament is encouraged.
Standards
B1.s1.
All buildings shall be designed specifically for the context and character of the corridor. 'Iconic' corporate standard building design is encouraged at identified gateway and landmark locations.
B1.s2.
The majority of the building(s) of a development shall possess an architectural character that respects traditional design principles, such as:
•
Variation in the building form such as recessed or projecting bays;
•
Expression of architectural or structural modules and detail;
•
Diversity of window size, shape or patterns that relate to interior functions;
•
Emphasis of building entries through projecting or recessed forms, detail, color or materials;
•
Variations of material, modules, expressed joints and details, surface relief, color, and texture to scale;
•
Tighter, more frequent rhythm of column/bay spacing, subdividing the building façade into smaller, more human scaled elements.
B2.
Building Form
Guidelines
B2.g1.
New development should create occasional special building forms that terminate views, create a unique skyline, and aid in way-finding.
B2.g2.
Building form should emphasize important components of a building, such as an entry, or a special internal space.
B2.g3.
Lower building heights or upper level stepbacks are encouraged on the south or east side of the street or public open space in order to provide more sun penetration to the ground level.
B2.g4.
Taller buildings adjacent to lower buildings shall establish scale relationships with lower, neighboring buildings through methods such as: compatible horizontal alignment of architectural features and fenestration, and height and form transitions from one building to another.
Standard
B2.s1.
Building form shall employ a uniform level of quality on all sides of the building.
B3.
Building Facade
Guidelines
B3.g1.
Building facades should be designed to provide human scale and detail and to avoid large areas of undifferentiated or blank facades.
B3.g2.
Each building facade oriented to the street or public space should provide architectural variety and scale through the use of such elements as: expressions of building structure; patterns of window, door or other openings that provide surface variation through change of plane, change in color; change in texture; change in material module or pattern; art or ornament integral with the building.
B3.g3.
Primary building facades should include some elements that provide a change in plane that create interest through the interplay of light and shadow. Examples of such elements are:
•
recessed windows, at least 3 inches;
•
recessed entries and doors;
•
projecting sills;
•
recessed or projecting balconies;
•
projecting pilasters, columns, bays;
•
projecting cornices, roofs.
B3.g4.
Each 'base' should be composed of the first floor or first two floors of the building.
B3.g5.
Each 'base' in its entirety should be designed to give the appearance of greater height than any single floor of the middle.
B3.g6.
Each 'base' should have a greater level of transparency than the 'middle' or 'top.'
B3.g7.
The architectural treatment of the 'top' should be designed to create a sense of distinctly completing the dominant architectural theme of the 'middle' of the building. This architectural completion may be accomplished by such strategies as: change in the window rhythm, change in apparent floor height, setback, use of other materials, or a combination of these elements.
B3.g8.
Distinctive corner, entry treatments and other architectural features designed to interact with contextual features may be designed differently than the 'base', 'middle', and 'top.' This difference would allow the addition of vertical emphasis at significant architectural points along the building facade.
B3.g9.
The 'top' of buildings above four (4) stories may have a 'cap' set back above the lower stories, which is distinctive in shape and smaller than the previous floor.
Standards
B3.s1.
The building facade shall generally have three vertical divisions: 'bases,' 'middles,' and 'tops.' In buildings of three stories or less in height, the 'top' may be comprised of an ornamental 'cap' or cornice rather than the articulation of an entire floor of habitable space.
B3.s2.
The design of 'roofscape' elements of tall buildings shall relate directly to the building walls.
B3.s3.
Building design shall create varied roof parapet and cornice lines in order to create interesting and human scaled skylines.
B4.
Building transparency
Guidelines
B4.g1.
Where functionally appropriate, the ground floor, street-facing facade shall be made of transparent materials designed to allow pedestrians to view activities inside the buildings, retail goods for sale, or display lighted windows related to these activities.
B4.g2.
When transparency is not functionally appropriate, other means should be used to provide activity along the street-facing façade such as public art; architectural ornament or detailing; or material, texture, or color patterns.
B4.g3.
Buildings should incorporate a window or glazing-to-wall ratio that is sufficient to establish the visual solidity of the building form.
B4.g4.
Reflective glass should be used sparingly, if at all, to reduce glare, reduce the opacity or 'blankness' of the facade. Coated or tinted glass may be considered to reduce heat gain, particularly on west and south facades.
B4.g5.
Windows or glazing on upper levels should be sufficiently transparent to provide an awareness of internal activities when viewed from the street or public spaces.
Standards
B4.s1.
Glass without coatings or tints shall be used for all retail glazing. In no case shall highly reflective glass be used.
B5.
Building Entries
Guidelines
B5.g1.
For mixed-use buildings with residential units, one or more separate building entrances from the sidewalk should be used to provide access to the residential units.
B5.g2.
Detailed and elaborate entries should be used as another way to create street level interest and architectural variety.
B5.g3.
Major building entries should be emphasized through such design devices as changes in plane, differentiation in material and/or color, greater level of detail, enhanced lighting, ornament, art, and/or building graphics.
B5.g4.
Primary building entries should be oversized, and generally break the storefront/ground floor façade pattern.
Standard
B5.s1.
Each multi-story building shall have one clearly identifiable 'front door' that addresses the street. In addition to this 'front door,' a building occupying an entire city block shall include at least one other building entrance along each block face.
B6.
Building Materials
Guidelines
B6.g1.
New development should use materials and colors that possess a comfortable and familiar character, convey a sense of quality and attention to detail, and are compatible with materials of adjacent buildings.
B6.g2.
New development should use lasting materials that weather well, need little maintenance, and resist vandalism.
B6.g3.
Materials and/or detailing at retail frontages should distinguish between the structural parts of a building (columns, walls and beams), and the infill parts of a building (wall panels, frames, windows and doors).
B6.g4.
Infill materials should have a non-structural appearance.
Standards
B6.s1.
A significant portion of the facade facing a street or public open space (not including windows, doors and their framing systems), shall be composed of highly durable materials such as: brick, stone, cast stone, specially treated concrete masonry units, terra-cotta, and/or glass. All building materials shall be integrally tinted.
B6.s2.
Building materials shall maintain a uniform level of quality on all sides of the building.
B7.
Parking Structures
Guidelines
B7.g1.
The exterior of parking structures should be wrapped with mixed-use space in order to minimize the visual impact of parking on the pedestrian experience, and the street environment and to increase pedestrian activity and interest along the street by locating active uses at the street level of parking garages
B7.g2.
Garage facades visible from public streets and open spaces should be compatible in character and quality with adjoining buildings.
B7.g3.
Parking structures should create visually interesting facades that provide human scale and detail while avoiding large areas of undifferentiated or blank facades.
B7.g4.
Openings should be vertically and horizontally aligned.
Standards
B7.s1.
Street oriented facades shall conceal or effectively reduce the impact of parked cars and light sources from the exterior view for the full height of the structure.
B7.s2.
Multi-story parking structures (3 levels or more) with facades facing public streets shall provide commercial, live-work, residential and/or institutional space for not less than 50 percent of the garage's ground level street facing frontage, or the design and structure of the ground floor street frontage should be able to accommodate in the future one of the above listed uses.
B7.s3.
Sloping ramps shall not be visible within the street facade of any parking structure.
B8.
Building Lighting
Guidelines
B8.g1.
Building lighting should accentuate important architectural components of the building, such as entries, towers or roof elements, or repetitive columns or bays, and include decorative lighting.
B8.g2.
Building lighting should provide indirect or direct lighting for adjoining sidewalks and open spaces.
B8.g3.
Primary building entries should be externally lit so as to promote a more secure environment at the door, emphasize the primary point of entry into the building, and provide sufficient lighting for efficient access into the building.
B8.g4.
Steps and/or ramps at or leading to a primary building entry should be illuminated sufficiently for safe access.
Standard
B8.s1.
Entry lighting shall complement the building's architecture. Standard security lighting such as wallpacks shall not be allowed.
B9.
Rooftop design
Guidelines
B9.g1.
Rooftop design should maintain the integrity of architecturally designed building tops and help create interesting and varied skylines.
B9.g2.
In mixed use development, if residential uses are located near mechanical equipment, care should be taken to mitigate the impacts of noise and odors.
B9.g3.
Antennae that extend over five feet above the roof line are encouraged to have screening techniques applied such as color and material to minimize visibility.
B9.g4.
Streetscape within the corridor area should not be cluttered by utility elements.
B9.g5.
Utility boxes should be located so that they do not obstruct pedestrian traffic or block sight lines at intersections.
Standards
B9.s1.
All roof mounted mechanical and electrical equipment, communication antennae or dishes shall be enclosed, screened, organized, designed and/or located as part of the architectural expression and shall not be visible from the public right-of-way. Any equipment shall be covered or screened to its full height.
B9.s2.
Switch boxes, transformers, electrical and gas meters, and other above ground utility elements shall be screened or located out of view from the street.
C.
LANDSCAPE
C1.
Perimeter Landscaping
Guidelines
C1.g1.
Perimeter landscaping design should create street and plaza spaces that join buildings, uses, pedestrian areas, and streets into a unified urban place.
C1.g2.
Perimeter landscaping should reinforce the pedestrian environment established in the adjoining street right-of-way.
C1.g3.
Perimeter landscaping should be designed to provide seamless transitions between buildings, uses, and open spaces that promote the mixing of commercial, residential, and institutional uses.
C1.g4.
Where a landscape perimeter area occurs between a building frontage and a street right-of-way, it should be designed to extend the pedestrian amenities of the street, such as increased walkway widths, areas for outdoor café/restaurant seating, increased sidewalk widths to allow window shopping out of the stream of pedestrian traffic, and space for the temporary display of a retailer's goods.
C1.g5.
Where space permits, planting in containers, raised planters, or cutouts in the paving is encouraged.
Standard
C1.s1.
Where a side setback landscape perimeter area occurs, it shall be designed to contribute to a pedestrian amenity zone such as a passageway, or contribute to a paved driveway or alley.
C2.
Internal courtyards, plazas and open spaces
Guidelines
C2.g1.
Internal courtyards, plazas, or open spaces should be designed to create useable open spaces, suitable for passive recreational activities such as informal play, reading, and sitting in the sun or shade.
C2.g2.
All open spaces accessible to the general public should be open a minimum of 12 hours per day.
C2.g3.
Private open space may be fenced with wrought iron, masonry or comparable decorative fencing or otherwise controlled for security.
Standard
C2.s1.
All public and private open space not used for recreation shall be attractively landscaped with plant material and hard surfaces.
C3.
Hardscape Design
Guidelines
C3.g1.
Hardscape design should provide a quality of paving materials and patterns consistent with the quality of the surrounding architecture and open spaces and provide safe paving conditions for all persons.
C3.g2.
Hardscape design should create interest and variation within paved surfaces that includes but is not limited to public art, coloring, or materials.
C3.g3.
Special paving should be carefully chosen for structural capability and durability in the local climate. Uncolored concrete, colored concrete, brick, hydraulically pressed concrete unit pavers or stone is recommended.
C3.g4.
Special paving patterns and materials should be used to emphasize important building entries, provide interest and variation, and differentiate between sidewalks, plazas, medians, and crosswalks.
Standards
C3.s1.
Sidewalks shall be separated or buffered from vehicle travel lanes by street/pedestrian lights, and/or street trees in grates or in a tree lawn.
C3.s2.
In transition areas, sidewalks shall be separated from the street by trees in tree lawns.
C4.
Landscape: Trees and Plant Materials
Guidelines
C4.g1.
Landscaping should create a strong identity for each street and use quality plant materials that are located, sized, and provided in quantities sufficient to emphasize important streets.
C4.g2.
Landscaping should use plant materials that tolerate an urban condition.
C4.g3.
Trees should align parallel and perpendicularly across the street with each other whenever possible.
C4.g4.
Ornamental trees should not be used in a street right-of-way.
C4.g5.
Tree grates or planting cut-outs should be used in paved areas to prevent excessive soil compaction.
C4.g6.
Large tree pits that allow for a broader canopy are preferred over typical street trees.
C4.g7.
All tree lawns and street trees in cut-outs, tree pits, and grates should be irrigated with an automatic irrigation system. Drought tolerant turf or low, continuous ground covers should be used as the primary ground cover for continuous tree lawns.
C4.g8.
To the maximum extent feasible, topsoil that is removed during construction activity should be conserved for later use on areas requiring revegetation and landscaping.
Standards
C4.s1.
No artificial trees, shrubs, turf, or plants shall be used to fulfill the minimum requirements for landscaping.
C4.s2.
Tree lawns shall be a minimum of 6 feet in width, measured from the back of curb to the edge of the sidewalk.
C4.s3.
Street trees shall be centered within the width of the tree lawn.
C4.s4.
Street trees in tree grates shall be at least 2 feet 6 inches from the face of the curb. Tree grates shall be at least 24 square feet with openings no more than ¼ inch to ⅜ inch in width and should be designed to allow for tree trunk growth.
C5.
Street and Pedestrian Lighting
Guidelines
C5.g1.
Lighting should provide a safe and secure environment for motorists, bicyclists, and pedestrians.
C5.g2.
Lighting should create an identity for the development and/or special streets.
C5.g3.
Lighting should enhance the quality of streets in the commercial core through the design of the light poles, bases, fixtures, and attachments.
C5.g4.
Street and/or pedestrian light poles should be aligned with and centered between street trees.
C5.g5.
Where the light source is directly visible, the luminaries should be designed to incorporate elements to reduce glare, such as translucent, internal refracting surfaces to direct light down and away from adjoining private property; lower height poles; lower wattage or pole location.
Standards
None in this Section.
C6.
Street Furniture
Guidelines
C6.g1.
Seating should be durable, comfortable, attractive, securely anchored, and easy to maintain. Seating surfaces should be 16 to 18 inches high with a minimum depth of 16 inches for seats without backs and 14 inches for seats with backs.
C6.g2.
Where bus stops occur within tree lawns, a minimum of one 6-foot long bench should be placed on a concrete pad. Where a bus stop occurs on a wide attached sidewalk, a 6-foot long bench should be provided within the sidewalk's amenity zone.
C6.g3.
Trash receptacles should be conveniently located near benches and other activity nodes.
C6.g4.
Trash receptacles should relate in appearance and color to other street furniture. They should be firmly attached to paving to avoid vandalism. Covered tops and sealed bottoms should be included to keep the contents dry and out of sight at all times.
C6.g5.
Bicycle racks should be placed near entrances or gathering places, but out of pedestrian and bicycle traffic areas where they may create tripping or other safety hazards. If possible, locate racks where parked bicycles are visible from the inside of adjacent buildings.
C6.g6.
Newspaper racks and trash receptacles should be located at areas where high pedestrian activity is anticipated.
C6.g7.
Newspaper boxes should be clustered together and screened by specially designed railings. They should be located adjacent to pedestrian activity, but not so as to obstruct drivers' views at intersections, or car overhang/door swings at the curb.
Standards
None in this Section.
C7.
Wayfinding Elements
Guidelines
C7.g1.
Wayfinding should compliment and enrich the pedestrian experience and create interesting streets and spaces.
C7.g2.
Wayfinding information should be conveyed clearly and efficiently with high quality sign and graphic design.
C7.g3.
Information should be provided for events on-site as well as within the City.
C7.g4.
To provide art, whimsy and contrast to the civic structure of the street furnishings, wayfinding elements should relate to local culture and flavor.
C7.g5.
Information kiosks and wayfinding elements should be located near pedestrian origin points such as parking structure stairs and elevators, public plazas and near entrances to public buildings.
Standards
None in this Section
C8.
Gateway Elements and Public Art
Guidelines
C8.g1.
Public art should engage the community, and express community identity.
C8.g2.
Art should create experiences for the senses and opportunities for surprise, wonder, interest, contemplation, reflection, humor, interaction and play.
C8.g3.
Art should provide shade structures at appropriate locations, particularly on the north side of the street.
C8.g4.
Commissioned works should exhibit superior craftsmanship and design, and be fabricated of durable, low maintenance materials using proven technologies. A range of signature pieces should include integrated urban design elements, architectural detailing and interactive features.
C8.g5.
Art should be sited to create areas of emphasis within the urban fabric while supporting the social function of each space.
C8.g6.
Selected artworks should include interactive elements allowing residents and visitors to walk through, play, sit on, and otherwise physically interact with the finished work.
C8.g7.
Artwork, where appropriate, should be integrated into infrastructure and site furnishings (i.e., hardscape/landscape elements, building facades, tree grates, wayfinding devices, seating, etc.).
Standards
C8.s1.
All plaza areas shall include public art.
C8.s2.
Artwork shall be designed and sited to correlate with surrounding activity patterns.
D.
Signage
D1.
General Criteria
Guidelines
D1.g1.
Signs should be located, sized, and designed for single or multiple uses so as to eliminate conflicts, predict the impact and effects of the signs on adjoining properties, avoid clutter and achieve the desired character of their application.
D1.g2.
In an effort to limit the variety of sign types used on a single building along the corridor, the following combinations should be considered:
•
One (1) wall sign per use; window signs limited to ten (10) percent of any window area; one (1) monument sign per building frontage, but awning signs, pole signs, or projecting signs are discouraged in this combination.
º
Window signs limited to 20 percent of the window area, awning signs, and one (1) projecting sign per use, but wall signs, pole signs, or monument signs are discouraged in this combination.
º
One (1) wall sign per use, one (1) projecting sign per use if located or designed so as not to visually conflict, window signs limited to 10 percent of any window area, but awning signs, pole signs, or monument signs are discouraged in this combination.
Standards
D1.s1.
Rehabilitated buildings shall provide a sign plan showing locations, sizes, heights, and probable design and illumination of all sign types to be used on the building or its site.
D2.
General Number and Location of Signs
Guidelines
D2.g1.
Signs should be limited in number commensurate with the needs of the uses in the building.
D2.g2.
Signs should respect the architectural character and design of the building in their number and location.
D2.g3.
Sign clutter, where the number and size of signs dominate the storefront or façade of the building, should be avoided.
Standards
D2.s1.
Wall, window, awning, and projecting signs shall not be allowed above the ground floor with the exception of the following with the discretion of the design review committee:
•
Painted, face-lit wall signs;
•
Internally lit channel letter signs and/or logos;
•
Painted wall murals with a minor component for the identification of a business;
•
One unlit window sign per business;
•
The extension of a ground floor projecting sign;
•
The name of the building integrated into the material and/or design of the facade; In no case shall an internally lighted, cabinet type wall sign be allowed above the ground floor.
D2.s2.
Signs shall not be located within the residential portion of the facade of any mixed use building.
D2.s3.
A maximum combination of three sign types shall be used for any building frontage. Such sign types are: wall, projecting, ground, window, awning, marquee and arcade.
Wall sign
Window sign
D3.
General Size and Height
Guidelines
D3.g1.
The size of signs should be related to the location and speed of movement of the typical person viewing the sign.
Standards
None in this Section.
D4.
General Design and Illumination
Guidelines
D4.g1.
Signs should respect the architectural character and design of the building.
D4.g2.
Signs should be expressive of the activity, product, or use for which they are displayed.
D3.g3.
Signs should be compatible with existing residential uses.
Standards
D4.s1.
Materials for signs shall compliment the color, material and overall character of the architecture.
D4.s2.
Signs shall be constructed of high quality, durable materials. All materials must be finished to withstand corrosion. All mechanical fasteners shall be of hot-dipped galvanized steel, stainless steel, aluminum, brass or bronze.
D4.s3.
All conduits, transformers, and other equipment shall be concealed, and shall have UL ratings.
D4.s4.
Exterior lighting of signs shall be oriented down onto the face of the sign, not up from below to minimize night sky light pollution.
D4.s5.
Sign illumination shall not create objectionable glare to pedestrians, motorists, and adjoining residents.
D4.s6.
A business's corporate logo or typical sign design may be allowed by the design review committee. However, the design review committee shall retain complete control over the design, dimensions, location, number and type of the sign.
D4.s7.
Hand painted signs shall not be allowed, unless painted by a sign contractor specializing in hand painted or hand crafted signs.
D4.s8.
Sign illumination shall be integrated into the design of the sign. Signs may be externally lit so long as the external lighting has been conceived and controlled as part of the sign design.
D4.s9.
Internally illuminated sign cabinets, either for wall or projecting signs, shall not have white or light colored back-lit translucent face panels.
Signs compliment color, material and character of architecture
D5.
Wall Signs
Guidelines
D5.g1.
Wall signs should be integrated with the architecture of the building.
D5.g2.
In general, wall mounted sign cabinets should be discouraged.
Standards
D5.s1.
Wall signs shall be located within any sign areas clearly designed for signs on existing or proposed building facades.
D5.s2.
Lighted wall signs shall not be located at the top of a building's facade if the facade is higher than two stories and shall not directly face a residential neighborhood.
D5.s3.
Maximum wall sign size shall not be increased by an increase in sign height.
D5.s4.
No more than one wall sign shall be allowed per building.
D5.s5.
Wall signs shall not overlap, or generally conflict with important architectural features such as windows, cornices, belt courses, or other details.
D5.s6.
Wall signs located on the side wall of a building that faces a side property line, alley, or parking area (including a side property line along a street), shall not be lighted above the ground floor.
D5.s7.
Wall signs shall be composed of individually mounted letters, logos or icons without sign backing panels, or letters/logos mounted on a backing panel.
D5.s8.
Phone/Fax numbers on all signs, with the exception of window signs, shall not be allowed.
D5.s9.
Neon signs, except those located in a window, shall not be allowed.
D6.
Projecting Signs
Guidelines
D6.g1.
Projecting signs should not be closer than 50 feet apart, and no more than three for 300 feet of street frontage.
Standards
D6.s1.
Each use by right shall be limited to one projecting sign for each of that use's street frontage.
D6.s2.
Projecting signs shall not be located above the ground floor.
D6.s3.
All projecting sign structures on a building shall be located at the same height as the other sign structures.
D6.s4.
Projecting signs shall be located above or below non-signed awnings, but not in line with the awnings.
D6.s5.
Projecting signs shall not be greater in size than 12 square feet per face or 24 square feet per sign.
D6.s6.
Projecting signs shall be externally lit. Internally lit sign cabinets are generally discouraged except where the sign face is composed of metal with back lit cut out letters or logos.
Appropriately scaled lighting and signage
D7.
Ground Signs
Guidelines
D7.g1.
Ground signs should be refined, creative and unique.
D7.g2.
'Designed' pole or post signs are encouraged when the vertical supports are integrated into the design of the sign.
D7.g3.
The design of a joint identification sign should be unified, uncluttered, easily readable, and of high quality. Ways to avoid a cluttered appearance are:
•
The sign text for most components is composed of the same type face and size.
•
The sign structure or frame is dominant enough or simple enough to visually organize varied components.
•
The sign has a clear hierarchy or importance in its components.
Standards
D7.s1.
Only one monument or per street frontage sign shall be allowed per building. The monument sign may also be a joint identification sign.
D7.s2.
Ground signs shall have no more than one sign cabinet or backing panel.
D7.s3.
If lighted, monument signs should be externally lit with a shielded or directed light source.
Desirable ground sign
D8.
Window Signs
Guidelines
D8.g1.
Window signs should emphasize a window's transparency and sense of openness to the interior.
D8.g1.
Window signs should avoid clutter 1) within the text and graphic components of the window signs, and 2) in combination with the objects of view through the window.
Standards
D8.s1.
Window signs shall generally be located in the lower or upper 25 percent of the window area. Window signs may be located in the middle portion of the window, but should not substantially obscure the activities or displays beyond the window.
D8.s2.
Window signs should not be larger than 10 percent of each window or door area, except that window signs may be as large as 20 percent of each window area if no wall sign is provided.
D8.s3.
Storefront window signs shall be limited to either the tenant's name or logo. Operating hours may be applied onto the glass, but shall be kept small, preferably on the windows next to the front door.
D8.s4.
Window signs on glazing shall be either silk screened, back-painted, metal-leafed, or sand-blasted onto the glass. Vinyl letters are not allowed.
D9.
Awning Signs
Guidelines
D9.g1.
Awning signs should be carefully controlled so as not to become substitutes for wall signs or projecting signs
Standards
D9.s1.
Each awning may have a sign printed on its valence.
D9.s2.
Awning signs shall not be allowed above the ground floor. Awnings without signs may be allowed above the ground floor if they are compatible with the architecture.
D9.s3.
Awnings shall be consistent in color and visually balanced over the façade of the building.
D9.s4.
Standard residential type aluminum awnings shall not be used. Awnings shall be composed of non-combustible acrylic fabric.
D9.s5.
Back-lit translucent awnings with or without signs shall not be allowed. Shielded down lights within an awning that light only the paving under the awning may be acceptable.
D9.s6.
Entry canopies shall not be allowed if they extend more than 4 feet from the building face.
D9.s7.
Awning signs shall be located primarily on the awning valence that faces the street, not on a valence that is generally perpendicular to the street.
D9.s8.
If side panels are provided, such panels should not carry signs greater in area than 20 percent of the area of the awning sign panel.
D9.s9.
Text on awning valences shall not be greater than 8 inches high. A valence drop length shall be no greater than 12 inches.
D9.s10.
Awnings shall not extend vertically beyond a building's or storefront's individual bays.
D9.s11.
Awnings shall be composed of traditional forms, and compliment the window or bay within which it occurs. Straight, more steeply sloped awnings are preferred. Rounded 'barrel' awnings are discouraged. Rounded awnings designed to fit arched windows or bays are acceptable.
The Old Town area of the City has served as the cultural and economic center of the community for decades and retains many buildings that convey its early character through traditional architectural styles, Maintaining and enhancing an Old Town look and feel is critical to the success of Old Town and its economic viability.
These design guidelines provide direction for future improvements in the Old Town area by enhancing revitalization efforts and protecting property investments. The goal is to protect those historic resources and to revitalize the area by encouraging new development and building rehabilitation.
The guidelines will assist interested parties in understanding the aesthetic and historic character of the buildings and assist owners with decisions about renovation, repair, maintenance, rehabilitation and new construction. The guidelines are not a rigid set of rules and do not require that buildings be restored to an historic period or style. Rather, their purpose is to provide:
A.
Guidance to property owners and tenants about the Old Town buildings, their distinctive characteristics and how to maintain them;
B.
Various appropriate ways to address design, repair and rehabilitation issues;
C.
Good maintenance practices; and
D.
Appropriate ways to design new, compatible infill buildings.
The Old Town Design District and Old Town Center Design District have been established as overlay districts to protect and enhance the older architectural styles found in the Old Town area of the City.
The guidelines provide guidance for improvements to all properties within the two overlay districts, as described in Article VI, Chapter 8, Section 2 and Article VI, Chapter 8, Section 3. The guidelines apply to exterior alterations, additions to or the rehabilitation of existing buildings. They also apply to the design and construction of new single-family residential, multi-family residential, commercial, office, medical and industrial buildings. It is the intent that the architectural style more closely follows historical precedent nearest the Old Town Center Design District and allows for more creativity while meeting Key Principles around the edges of the Old Town Design District.
A.
The Old Town Design Review Committee (OTDRC) is authorized to enforce these design standards for new construction and renovations considering applications for letters of design approval. While the design committee may be flexible in applying these standards to projects, the intent of these regulations is ensuring that new construction and renovations are appropriate and support the historic character of the area. Property owners, developers, tenants and architects should use the guidelines when considering a project. In making its determination of the appropriateness of a project, the OTDRC shall utilize the following criteria:
1.
The proposed work generally complies with these standards.
2.
The integrity of an individual historic structure is preserved, as much as possible.
3.
New buildings or additions are designed to be compatible with surrounding properties.
4.
The overall character of Old Town is protected.
B.
The design review process guides an approach to certain design problems by offering alternative solutions and does not dictate a specific outcome. While ordinary repair and maintenance do not usually require approval, a Letter of Design Approval is necessary for any change to the exterior of a building that requires a building permit.
A.
Old Town Design Review Committee - The Old Town Design Review Committee has the authority described in Article III, Chapter 1, Section 5 of this UDC to administer these guidelines. The committee has been given the duty of reviewing and approving or denying proposed projects under applications for letters of design approval.
B.
Old Town Design Guidelines - The Old Town architectural design standards will serve as the guide by which the Old Town design review committee reviews projects for appropriateness.
C.
Letter of Design Approval - Within the Old Town Center Design District and the Old Town Design District overlay districts, the issuance of a Letter of Design Approval affirms appropriate design under the overlay district regulations and these guidelines and is required in accordance with the procedures and requirements contained within Article VI, Chapter 8, Section 2 and Article VI, Chapter 87, Section 3. All drawings and plans required for the pre-development conference and application for a Letter of Design Approval should be drafted to scale and executed in a manner that clearly depicts the character of the proposed work. While a professionally produced drawing is encouraged, it is not required, as the sketches that follow illustrate.
LETTER OF DESIGN APPROVAL PROCESS
The Old Town Center Design District should continue to develop in a coordinated manner so that an overall sense of visual continuity is achieved. The dominant character of this area should be that of a retail-oriented, commercial environment, with an active street edge that is inviting to pedestrians while also accommodating automobiles. Development should include a mix of building types, including older structures and compatible newer ones. Each should reflect the design trends of its own time, while also contributing to a sense of visual continuity and strengthening the pedestrian experience. In addition, a combination of uses is encouraged, including residential, office and retail.
A.
Building Setbacks - Buildings in commercial areas are aligned immediately at the inside edge of the sidewalk. This contributes to a sense of visual continuity. A typical building should have its primary entrance oriented to the street to establish a "pedestrian-friendly" quality. In most cases, entryways should be evenly spaced along a block, and recessed from the sidewalk edge, creating a sense of visual continuity. Secondary public entrances to commercial spaces or to upstairs space are also encouraged on a larger building.
Structures in the Old Town Center Design District should create a strong "building wall" along the street. A new building should align at the front lot line and be built out to the full width of the parcel (i.e., to the side lot lines). Although small gaps can occur between some structures, these are exceptions.
B.
Mass and Scale - Patterns are created along the street by the repetition of similarly sized building elements. For example, uniform facade widths evenly spaced in downtown create a rhythm that contributes to the visual continuity of the area.
C.
Building Form - One of the most prominent unifying elements of the Old Town Center is the similarity in building form. Commercial buildings are simple rectangular solids, deeper than they are wide. This characteristic is important and should be continued. Also, commercial roof forms appear flat, although there is typically a slight pitch to it for water to drain. This characteristic is important and should be preserved.
D.
Materials - Building materials of new structures should contribute to the visual continuity of the area. They should appear similar to those used traditionally to establish a sense of visual continuity. Brick and cast stone are the dominant materials and are preferred for new construction.
E.
Architectural Character - The street level floors of traditional commercial buildings are clearly distinguishable from the upper floors. First floors are predominantly fixed plate glass with a small percentage of opaque materials. Upper floors are the reverse: opaque materials dominate, and windows appear as smaller openings puncturing the solid walls. The floor-to-floor height on the street level is also generally taller than the upper floors. This feature should also be expressed in new construction.
This Section presents design guidelines for individual building elements that are influential to the overall character of Old Town buildings. When the elements are appropriately used in combination with one another, buildings will reflect a look and feel that is consistent with the goals of the Old Town Center Design District. Within each element are individual goals and design guidelines upon which the City will base its decisions as to the appropriateness of any new or remodeled structure
A.
Architectural Styles - The architectural style of all new and rehabilitate buildings in the Old Town Center Design District should be consistent and compatible with traditional buildings of the area.
While it is important that buildings be compatible with the surrounding traditional commercial context, it is not necessary that they imitate older building styles. The property owner is encouraged to use the one of the styles listed below, or an appropriate variation, in designing the overall character of their building. More detailed descriptions of each style can be found in Chapter 7:
1.
Italianate — Circa 1885—1900.
2.
Vernacular commercial storefronts — Circa 1900—1920.
B.
Mass, Scale, and Form - A building's mass and size are its exterior bulk, and form is its shape in its relationship to its adjoining buildings and to its users - pedestrians. Building heights vary in the Old Town center and yet there is a strong sense of similarity in scale. Individual buildings are attached, often sharing interior sidewalls. Maintain the traditional mass, size and form of buildings seen along the street (i.e., a building should be a rectangular mass that is one- to three-stories in height).
1.
Buildings are rectangular in shape, deeper than wide.
2.
Facades and sidewalls are rectangular.
3.
At street level, buildings should not have long, monotonous, uninterrupted walls.
4.
Building wall offsets, including projections, recesses, changes in floor level, or changes of materials should be used to add architectural variety and interest, and to relieve the visual impact of a blank wall.
5.
While buildings may span several of the 20- to 30-foot wide properties, the individual lot width is still expressed as a distinct bay or module. Buildings should reflect this pattern.
6.
Floor heights should be expressed with horizontal moldings, alignment of windows and other architectural details.
____________
•
New interpretations of traditional building styles are encouraged.
•
A new design that draws upon the fundamental similarities among older buildings in the area without copying them is preferred. This will allow the building to be seen as a product of its own time and yet be compatible with its historic neighbors.
•
Buildings that are similar in scale and overall character to those seen historically are strongly encouraged.
•
Infill should be a balance of new and old in design.
•
This applies to architectural details as well as the overall design of a building
____________
BUILDING MASSING
C.
Roofs - The character of the roof is also a major feature for most historic structures. When repeated along the street, the repetition of similar roof forms contributes to a sense of visual continuity for the Old Town Center Design District.
1.
Roofs are flat and hidden by a parapet wall which add architectural character.
2.
Parapets on side facades should step down towards the rear of the building.
3.
Gable roof forms may also be considered if they are obscured by a "false front" storefront
4.
A parapet wall should not be altered, especially those on primary elevations or highly visible facades.
5.
Parapet walls should not be lowered or removed. Removing the parapet may damage the flashing for the roof and cause moisture problems.
6.
Avoid waterproofing treatments, which can interfere with the parapet's natural ability to dry out quickly when it gets wet.
FALSE FRONT (PEDIMENT & FLAT ROOF WITH PARAPET)
D.
Materials - The use of traditional building materials found in the area should be continued.
1.
Brick and cast stone are preferred.
2.
A simple material finish is encouraged for a large expanse of wall plane.
3.
A matte, or non-reflective, finish is preferred.
4.
Polished stone should be avoided as a primary material.
5.
Use the gentlest means possible to clean the surface of a structure. Harsh cleaning methods, such as sandblasting, can damage the historic materials, changing their appearance. Such procedures are inappropriate.
6.
Original building materials or features shall not be covered. Synthetic stucco, panelized brick, vinyl, aluminum or other composite siding materials are not appropriate.
7.
Removing more recent covering materials that have not achieved historic significance is encouraged.
8.
In some instances, a more recent covering may have achieved historic significance, especially if it was applied early in the building's history and may be maintained on the structure.
9.
An applicant may not re-side a building with another covering material if one already exists. Removing the covering to expose the original material is appropriate in such a case. Once the covering siding has been removed, repair the original underlying material.
10.
Color may be used to embellish building facade elements and enhance the attractive details of commercial buildings and should not disguise or overpower them. Colors should complement neighboring buildings and reflect a traditional color palette. Extremely bright, fluorescent or neon colors shall not be permitted as the primary color on the facades of buildings in the Old Town Design District. Only colors similar to or comparable to the palette adopted by the National Trust for Historic Preservation will be allowed.
E.
Architectural Elements - Architectural elements are the individual components of a building, including walls, doors, windows, cornices, parapets, roofs, pediments, and other features. Ornamental items include hoodmolds, trim at doors and windows; plaques and medallions; signboards or sign panels; date or name stones; and simple geometric shapes in metal, stone, or concrete.
Ornamentation and details of elements such as cornices and parapets are original components that enhance a building and give it a sense of style and character. Design commercial buildings, including both rehabilitation and new buildings, to include as many of these traditional defining elements as possible (i.e., recessed entries, display windows, kickplates, transom windows, midbelt cornices, cornices or pediments and vertically oriented upper-story windows).
Commercial buildings should, for the most part, all relate to the street and to pedestrians in the same manner: with a clearly defined primary entrance and large display windows. This will help maintain the interest of the street to pedestrians by providing views to goods and activities inside first floor windows. The repetition of these standard elements creates a visual unity on the street that should be preserved.
Specific Design Elements include:
1.
Storefronts.
a.
Alternative designs that are contemporary interpretations of traditional storefronts may be considered.
b.
Where the original storefront is missing, and no evidence of its character exists, a new design that uses the traditional elements may be considered. However, the new design should continue to convey the character of typical storefronts, including the transparent character of the display window.
c.
Retain the kickplate as a decorative panel. The kickplate, located below the display window, adds interesting detail to the streetscape and should be preserved. If the original kickplate is covered with another material, it should be exposed. If the original kickplate is missing, develop a sympathetic replacement design. Wood is an appropriate material for replacements on most styles. However, ceramic tile and masonry may also be considered when appropriately used with the building style.
d.
Significantly increasing (or decreasing) the amount of glass will negatively affect the integrity of a structure.
e.
On traditional storefronts, first floors should be more transparent than upper floors. Upper floors should appear more solid than first floors.
DESIGN ELEMENTS
KICKPLATE REPLACEMENT
2.
Entrances - Recessed entries were designed to provide protection from the weather. The repetition of recessed entries provides a rhythm of shadows along the street that helps to identify businesses and establish a sense of scale. Typically, recessed entries were set back between three and five feet.
a.
Maintain recessed entries where they are found.
b.
Restore the historic recessed entry if it has been altered.
c.
Avoid doors that are flush with the sidewalk.
d.
Where entries were not recessed historically, maintain them in their original position. However, one may also need to comply with other code requirements, including door width, direction of swing and construction. In some cases, entries must comply with accessibility requirements of the Americans with Disabilities Act. Note, however, that some flexibility in application of these other regulations is provided for historic properties.
e.
Building entrances should appear similar to those used traditionally in the block.
f.
Clearly define the primary entrance with an awning, canopy or other architectural or landscape feature.
g.
Secondary public entrances are also encouraged on a larger building or along an alley if there is parking in the rear of the site.
3.
Windows and doors - Windows and doors are some of the most important character-defining features of older structures, and give scale to buildings and provide visual interest to the composition of individual facades. Distinctive window and door designs help define many building styles. Windows and doors often are inset into relatively deep openings or have surrounding casings and sash components that have a substantial dimension that cast shadows. A typical, upper-story window is twice as tall as it is wide. Therefore, upper-story windows in new construction should relate to these proportions. Features important to the character of a window include its clear glass, frame, sash, muntin, mullions, glazing, sills, heads, jambs, moldings, operation, location and relation to other windows. Features important to the character of a door include the door itself, doorframe, screen door, threshold, glass panes, paneling, hardware, detailing, transoms and flanking sidelights.
a.
Retain the original shape of the transom glass in historic storefronts. Transoms, the upper glass band of traditional storefronts, introduced light into the depths of the building, saving on light costs. These bands should not be removed or enclosed.
b.
The shape of the transom is important to the proportion of the storefront, and it should be preserved in its historic configuration.
c.
If the original glass is missing, install new glass.
d.
Preserve the position, number, size and arrangement of historic windows and doors in a building wall. Many windows are "one-over-one," in that a single pane of glass is in both the upper and lower sashes. Others are "two-over-one," with two panes (or lights) in the upper sash and one is in the lower sash. These arrangements are preferred.
e.
Enclosing an historic opening is inappropriate, as is adding a new opening.
f.
Do not reduce the size of an original opening to accommodate a smaller window. Restore original openings which have been altered over time.
g.
Traditionally, windows had a vertical emphasis. The proportions of these windows contribute to the character of each residence and commercial storefront and should be maintained.
h.
If glass is broken or has been removed in the past, consider replacing it with new glass.
i.
Installing window air-conditioners in windows on building fronts is inappropriate.
j.
A new or replacement window or door should match the appearance of the original. While replacing an entire window or door is discouraged, it may be necessary in some cases. Although wood is preferred as a replacement material, alternative materials may be considered, if the resulting appearance matches the original as closely as possible. The substitute also should have a demonstrated durability in this climate.
k.
Very ornate windows or doors that are not appropriate to the building's architectural style are inappropriate.
l.
Windows should align with others in a block. Windows, lintels and their trim elements should align with those on adjacent older buildings.
4.
Architectural Embellishment - Most historic commercial buildings have cornices to cap their facades. Their repetition along the roof line contributes to the visual continuity on the block.
a.
Preserve the character of the cornice line.
b.
Reconstruct a missing cornice when historic evidence is available. Use historic photographs to determine design details of the original cornice.
c.
Replacement elements should match the original in every detail, especially in overall size and profile.
d.
The substitution of another old cornice for the original may be considered, provided that the substitute is similar to the original.
e.
Appropriate materials include stone, brick and stamped metal.
5.
Awnings and Canopies
a.
An awning or canopy should be similar to those seen traditionally.
b.
An awning compatible in material and construction to the style of the building is encouraged.
c.
Canvas awnings are inappropriate in the Old Town center.
d.
Use awning colors that are compatible with the overall color scheme of the facade. Solid colors or simple, muted-stripe patterns are appropriate.
e.
The awning should fit the opening of the building.
f.
Simple shed awnings are appropriate for rectangular openings.
g.
Odd shapes, bull nose awnings and bubble awnings are inappropriate on most historic structures.
h.
Internal illumination of an awning is inappropriate. Lights may be concealed in the underside of a canopy, however.
i.
A fixed metal canopy may be considered.
j.
Appropriate supporting mechanisms are wall-mounted brackets, chains and posts.
k.
An awning or canopy should be mounted to accentuate character-defining features such as transom windows. The mounting technique should not damage significant features and traditional details.
6.
Pedestrian Character
a.
The project should reinforce the retail-oriented function of the street and enhance its pedestrian character.
b.
Promote friendly, walkable streets (i.e., projects that support pedestrian activity and contribute to the quality of life are encouraged).
c.
Provide site amenities, such as benches, lights, waste receptacles, landscaping, etc., to enhance the pedestrian experience.
The Commercial Component of Old Town Outside the Old Town Center Design District should develop in a manner that is inviting to pedestrians while also accommodating automobiles and be architecturally complementary to the Old Town center. Development should include a mix of building types, including older structures and compatible newer ones. Each should reflect the design trends of its own time, while also contributing to a sense of visual continuity and strengthening the pedestrian experience. In addition, a combination of uses within a single structure or development is encouraged, including residential, office and retail.
A.
Building Setbacks - A wide variety of building setbacks can be seen throughout the Old Town Design District. Much of this variety is due to the influence of the automobile and need to provide on-site parking. This parking typically has been provided in front of the building for consumer convenience. However, this trend has caused an erosion of the historic edge of buildings located along a sidewalk. Therefore, new developments should respect this original tradition of building placement with parking located in the side and rear when feasible.
B.
Mass and Scale - A variety of building sizes exist in this area. While contemporary design approaches are encouraged, developments should continue to exhibit this same variety in size and scale.
C.
Building Materials - Building materials of structures should contribute to the visual continuity of the area.
D.
Architectural Character - The Old Town center is made up of architectural styles from the early 1900s. These architectural styles should be extended outside the Old Town center. Commercial, office, medical, retail and industrial buildings throughout the Old Town Design District should utilize these architectural features and details on new structures. Buildings also relate to one another through the consistent use of similar building materials, storefronts, recessed entries and the alignment of these different elements along a block. This tradition is strongly encouraged for new developments in the district. The residential neighborhoods of the design district represent a number of different architectural styles and reflect the time periods in which they were constructed. Commercial construction within the district may utilize residential architectural design thus blending the uses and the visual harmony of differing construction eras.
E.
Pedestrian environment - The design district should provide a controlled, organized transportation system that provides a safe pedestrian environment. Development should include direct, well-marked linkages from the sidewalk to a well-defined front door entry. Streets, sidewalks and landscaping should define the road edge and encourage walking, sitting and other pedestrian activities. Automobile activity should not, however, create an unsafe environment for the pedestrian. Automobile circulation patterns, both internal and external, should be clearly identified and should not interfere with pedestrian circulation systems.
F.
Tree Preservation - The mature tree canopy within Old Town should be preserved as much as possible and buildings located in a manner that preserves the natural character of the area.
This Section presents design guidelines for individual building elements that influence the overall character of buildings in Old Town. When the elements are appropriately used in combination with buildings will be consistent with the goals of the Old Town Design District. Within each element are individual goals and design guidelines statements upon which the City will base its decisions as to the appropriateness of any new or remodeled structure.
____________
•
New interpretations of traditional building styles are encouraged.
•
A new design that draws upon the fundamental similarities among older buildings in the area without copying them is preferred. This will allow the building to be seen as a product of its own time and yet be compatible with its historic neighbors.
•
Buildings that are similar in scale and overall character to those seen historically are strongly encouraged.
•
Infill should be a balance of new and old in design.
•
This applies to architectural details as well as the overall design of a building
____________
A.
Architectural Style - The architectural style of all new and rehabilitated buildings in the Old Town Design District should be designed to reflect either traditional Old Town center commercial buildings or be consistent and compatible with that of the traditional residential styles of the area.
Buildings that are designed to reflect the traditional commercial style of Old Town should utilize compatible architectural styles. While it is important that buildings be compatible with the surrounding traditional commercial context, it is not necessary that they exactly imitate older building styles. Buildings that reflect a traditional residential style should incorporate an individual style and not blend various styles found in the area. The property owner is encouraged to use the one of the styles listed below, or an appropriate variation, in designing the overall character of their building. More detailed descriptions of each style can be found in Chapter 7:
1.
Italianate — Circa 1885—1900.
2.
Vernacular commercial storefronts — Circa 1900—1920.
3.
Folk Victorian Style Residential — Circa 1870—1910
4.
Queen Anne Victorian Style Residential — Circa 1880—1910
5.
Prairie Style Residential — Circa 1900—1920.
6.
Craftsman Style Residential — Circa 1905—1930.
Multi-family residential - New or renovated multi-family projects in the Old Town Design District should utilize a style that is consistent with commercial buildings located in the Old Town Center Design District. Buildings should align closer to the street than a typical single-family detached structure. Parking should be provided in the rear to enhance the pedestrian nature of the area and to showcase the architectural features of the structure.
B.
Mass, Scale, & Form - A wide variety of building setbacks can be seen throughout the Old Town design district, outside of the Old town center design district. Much of this variety is due to the influence of the automobile and need to provide on-site parking. This parking has typically been provided in front of the building which cause and erosion of the edge of buildings along the sidewalk seen historically. Therefore, it is strongly encouraged that new developments should locate parking on the side and rear when feasible. That said it is of vital interest to the City to preserve mature tree canopy within the area as much as possible and buildings may be located to preserve trees.
1.
Building wall offsets, including projections, recesses, changes in floor level, or changes of materials should be used to add architectural variety and interest, and to relieve the visual impact of a blank wall.
2.
While buildings may span lots much larger than the 20- to 30-foot wide properties originally established, the 20—30-foot lot width is still expressed as a distinct bay or module. Buildings should reflect this pattern.
3.
Traditional floor heights should be expressed with horizontal moldings, alignment of windows and other architectural details.
4.
Floor-to-floor heights shall appear to be similar to those seen traditionally. Windowsills, windows, moldings and cornices are among those elements that should align.
C.
Roofs - The character of the roof is a major feature for most historic structures. When repeated along the street, the repetition of similar roof forms contributes to a sense of visual continuity for the neighborhood. The roof pitch, roof materials, size and orientation are all distinct features that contribute to the character of a roof. Gabled and hip forms occur most frequently in residential areas while flat roofs appear on older commercial buildings in the City. Although the function of a roof is to protect a structure from the elements, it also contributes to the overall character of the building. The Old Town Design District has various roof forms, as illustrated below.
ROOF FORMS
D.
Porches - Many building types developed with the porch as a prime feature of the front facade. Because of their historical importance and prominence as character-defining features, porches should be preserved and receive sensitive treatment during exterior rehabilitation. Porches vary as much as architectural styles. They differ in height, scale, location, materials and articulation. Some are simple one-story structures, while others may be complex with elaborate details and finishes. These elements often correspond to the architectural style of the house and therefore the building's design character should be considered before any major rehabilitation work is begun.
1.
Maintain the existing location, shape, details, and columns of the porch.
2.
Missing or deteriorated decorative elements should be replaced with new wood, milled to match existing elements. Match the original proportions and spacing of balusters when replacing missing ones.
3.
Unless used historically, wrought iron porch posts and columns are inappropriate.
4.
Enclosing a porch with opaque materials that destroy the openness and transparency of the porch is inappropriate. When a porch is enclosed or screened, it shall be done with a clear transparent material. This material should be placed behind porch columns.
E.
Materials - The use of traditional building materials found in the area should be continued. Brick and stone were the primary materials used for building walls, chimneys, porch supports and foundations. Wood siding also was applied to on residential structures, with painted, horizontal clapboard being the most popular. In each case, the distinct characteristics of the building material, including the scale of the material unit, its texture and finish, contribute to the historic character of a building.
The best way to preserve or rehabilitate older building materials is through well-planned maintenance. Wood surfaces should be protected with a good application of paint. In some cases, historic building materials may be deteriorated, and repair rather than replacement is preferred. Frequently, damaged materials can be patched or consolidated using special bonding agents. In other situations, however, some portion of the material may be beyond repair and must be replaced. The new material should match the original in appearance. Rather than replace original materials, some property owners may consider covering them. Aluminum and vinyl siding, however, are not allowed.
1.
Materials shall appear to be similar to those used traditionally.
2.
Brick and cast stone were the traditional materials of commercial style buildings
3.
Brick, cast stone and wood horizontal lap siding were the traditional materials of residential style buildings. When horizontal siding is appropriate, a cementitious siding such as Hardie plank may be used to achieve the desired look while being more durable and requiring less maintenance.
4.
A simple material finish is encouraged for a large expanse of wall plane.
5.
A matte, or non-reflective, finish is preferred.
6.
Polished stone should be avoided as a primary material.
7.
Color may be used to embellish building facade elements and enhance the attractive details of commercial buildings and should not disguise or over power them. Colors should complement neighboring buildings and reflect a traditional color palette. Extremely bright, fluorescent or neon colors shall not be permitted as the primary color on the facades of buildings in the Old Town Design District. Only colors similar to or comparable to the palette adopted by the National Trust for Historic Preservation will be allowed.
F.
Architectural Elements - For non-residential styled buildings, individual building architectural elements play a critical role in the overall appearance. The following design elements should be used only for non-residential structures. Architectural elements are the individual components of a building, including walls, doors, windows, cornices, parapets, roofs, pediments, and other features. Ornamental items include hoodmolds, trim at doors and windows; plaques and medallions; signboards or sign panels; date or name stones; and simple geometric shapes in metal, stone, or concrete.
Ornamentation and details of elements such as cornices and parapets are original components that enhance a building and give it a sense of style and character. Design commercial buildings, including both rehabilitation and new buildings, to include as many of these traditional defining elements as possible (i.e., recessed entries, display windows, kickplates, transom windows, midbelt cornices, cornices or pediments and vertically oriented upper-story windows)
Commercial buildings should, for the most part, all relate to the street and to pedestrians in the same manner: with a clearly defined primary entrance and large display windows. This will help maintain the interest of the street to pedestrians by providing views to goods and activities inside first floor windows. The repetition of these standard elements creates a visual unity on the street that should be preserved.
Specific Design Elements include:
1.
Storefronts
a.
While commercial structures in the Old Town Design District may be set back from the street edge, a storefront that defines the main entry from the street for both the pedestrian and the automobile should be provided.
b.
Alternative designs that are contemporary interpretations of traditional storefronts may be considered.
c.
Here the original storefront is missing, and no evidence of its character exists, a new design that uses the traditional elements may be considered. However, the new design should continue to convey the character of typical storefronts, including the transparent character of the display window.
d.
Significantly increasing (or decreasing) the amount of glass will negatively affect the integrity of a structure.
e.
On traditional storefronts, first floors should be more transparent than upper floors. Upper floors should appear more solid than first floors.
f.
Avoid blank walls that do not provide interest to pedestrians.
g.
Large surfaces of glass are inappropriate on the upper floors and sides of commercial buildings. If necessary, divide large glass surfaces into smaller windows that are in scale with those seen traditionally.
DESIGN ELEMENTS
KICKPLATE REPLACEMENT
2.
Entrances — Recessed entries were designed to provide protection from the weather. The repetition of recessed entries provides a rhythm of shadows along the street that helps to identify businesses and establish a sense of scale. Typically, recessed entries were set back between three and five feet.
a.
Maintain recessed entries where they are found.
b.
Restore the historic recessed entry if it has been altered.
c.
Where entries were not recessed historically, maintain them in their original position. However, one may also need to comply with other code requirements, including door width, direction of swing and construction. In some cases, entries must comply with accessibility requirements of the Americans with Disabilities Act. Some flexibility in application of these other regulations is provided for historic properties.
d.
Clearly define the primary entrance with an awning, canopy or other architectural or landscape feature.
e.
Secondary public entrances are also encouraged on a larger building or along an alley if there is parking in the rear of the site.
3.
Windows and Doors - Windows and doors are some of the most important character-defining features of older structures. They give scale to buildings and provide visual interest to the composition of individual facades. Distinct window and door designs help define many building styles. Windows and doors often are inset into relatively deep openings or they have surrounding casings and sash components that have a substantial dimension that cast shadows which also contributes to the character of the historic style. A typical, upper-story window is twice as tall as it is wide and upper-story windows in new construction should relate to these window proportions. Features important to the character of a window include its clear glass, frame, sash, muntin, mullions, glazing, sills, heads, jambs, moldings, operation, location and relation to other windows. Features important to the character of a door include the door itself, doorframe, screen door, threshold, glass panes, paneling, hardware, detailing, transoms and flanking sidelights.
a.
Retain the original shape of the transom glass in historic storefronts. Transoms, the upper glass band of traditional storefronts, introduced light into the depths of the building. These bands should not be removed or enclosed.
b.
The shape of the transom is important to the proportion of the storefront, and it should be preserved in its historic configuration.
c.
If the original glass is missing, install new glass.
d.
Preserve the position, number, size and arrangement of historic windows and doors in a building wall. Many windows are "one-over-one," in that a single pane of glass is in both the upper and lower sashes. Others are "two-over-one," with two panes (or lights) in the upper sash and one is in the lower sash. These arrangements are preferred.
e.
Enclosing an historic opening in a facade is inappropriate, as is adding a new opening.
f.
Do not close down an original opening to accommodate a smaller window. Restoring original openings which have been altered over time is encouraged.
g.
Traditionally, windows had a vertical emphasis. The proportions of these windows contribute to the character of each residence and commercial storefront.
h.
If glass is broken or has been removed in the past, it should be replaced. If security is a concern, only wire glass or tempered glass, are appropriate.
i.
Installing window air-conditioners in windows on building fronts is inappropriate.
j.
A new or replacement window or door should match the appearance of the original. While replacing an entire window or door is discouraged, it may be necessary in some cases. Although wood is preferred as a replacement material, alternative materials may be considered if the resulting appearance matches the original as closely as possible. The substitute also should have a demonstrated durability in this climate.
k.
Very ornate windows or doors that are not original to the building's architectural style are inappropriate.
l.
Windows should align with others in a block. Windows, lintels and their trim elements should align with those on adjacent older buildings.
4.
Architectural Embellishment — Most historic commercial buildings have cornices to cap their facades. Their repetition along the street contributes to the visual continuity on the block.
a.
Preserve the character of the cornice line.
b.
Reconstruct a missing cornice when historic evidence is available. Use historic photographs to determine design details of the original cornice.
c.
Replacement elements should match the original in every detail, especially in overall size and profile.
d.
The substitution of another old cornice for the original may be considered, provided that the substitute is similar to the original.
e.
Appropriate materials include stone, brick and stamped metal.
5.
Awnings and Canopies.
a.
An awning or canopy should be similar to those used traditionally.
b.
An awning compatible in material and construction to the style of the building is encouraged.
c.
Canvas awnings are inappropriate in the Old Town Center.
d.
Use awning colors that are compatible with the overall color scheme of the facade. Solid colors or simple, muted-stripe patterns are appropriate.
e.
The awning should fit the opening of the building.
f.
Simple shed shapes are appropriate for rectangular openings.
g.
Odd shapes, bull nose awnings and bubble awnings are inappropriate on most historic structures.
h.
Internal illumination of an awning is inappropriate. Lights may be concealed in the underside of a canopy, however.
i.
A fixed metal canopy may be considered.
j.
Appropriate supporting mechanisms are wall-mounted brackets, chains and posts.
k.
Mount an awning or canopy to accentuate character-defining features. It should not hide character-defining features such as transom windows. The method and tools used for mounting should not damage significant features and traditional details.
G.
Pedestrian Character - To promote friendly, walkable streets, The Old Town area should continue to develop as a pedestrian-oriented environment. Streets and sidewalks should encourage walking, sitting and other outdoor activities. Buildings also should be visually interesting to invite exploration by pedestrians. Existing pedestrian routes should be enhanced.
1.
Develop the ground floor level of a project to encourage pedestrian activity.
a.
Sidewalks are required from the front street sidewalk to the main entrance. Secondary entrances should be in the rear or side of the building to allow for ease of access from side or rear parking areas.
b.
Avoid blank walls and large gaps between buildings.
c.
A building should have a clearly defined primary entrance oriented toward the street.
d.
Enhance the street edge and building entrances for both drivers and pedestrians. This can be accomplished by landscape features, brick entry pillars, sidewalk paver bands at the sidewalk or driveway edge.
e.
Use landscaping and lighting accents to identify entrances.
f.
Place parking areas to the rear or side of a building when feasible.
The residential component of the Old Town Design District should be inviting to pedestrians and retain the feel of older neighborhoods. Development should include a mix of building types, including renovated older structures and newer structures constructed in an architectural style that contributes to a sense of visual continuity and strengthening the residential experience. Where appropriate, a combination of residential uses is encouraged, including single-family, townhouses and multi-family.
A.
Building Setbacks - A wide variety of building setbacks can be seen throughout the Old Town Design District. Much of this variety is due to the influence of the automobile and need to provide driveways and parking, as well as the lack of zoning regulations when these neighborhoods were developed. Therefore, it is strongly encouraged that new residential developments should build on this original tradition of building placement and locate parking in the side and rear when feasible.
B.
Building Materials - Building materials of structures should contribute to the visual continuity of the area.
C.
Architectural Character - The neighborhoods in the design district represent several different architectural styles and reflect the time periods in which they were constructed.
D.
Pedestrian environment - The design district should provide a controlled, organized transportation system that provides a safe pedestrian environment. Development should include direct, well-marked linkages from the sidewalk to a well-defined front door entry. Streets, sidewalks and landscaping should define the street edge and encourage walking, sitting and other pedestrian activities.
E.
Tree Preservation - The mature tree canopy within Old Town should be preserved as much as possible and buildings located in a manner that preserves the natural character of the area.
This Section presents design guidelines for individual building elements that are influential to the overall character of Old Town residential buildings. When the elements are appropriately used in combination, buildings will be consistent with Old Town. Within each element are individual goals and design guidelines statements upon which the City will base its decisions as to the appropriateness of any new or remodeled structure.
A.
Architectural Style - The architectural style of all new and rehabilitated residential buildings in the Old Town Design District should be designed to be consistent and compatible with that of the traditional residential styles of the area.
Buildings that are designed to reflect the traditional style of Old Town should utilize a compatible architectural style. While it is important that buildings be compatible with the surrounding structures, it is not necessary that they exactly imitate older building styles. Buildings that reflect a traditional residential style should incorporate an individual style and not blend various styles found in the area. The property owner is encouraged to use the one of the styles listed below, or an appropriate variation, in designing the overall character of their building. More detailed descriptions of each style can be found in Chapter 5:
1.
Queen Anne Victorian Style Residential — Circa 1880—1910
2.
Folk Victorian Style Residential — Circa 1870—1910
3.
Prairie Style Residential — Circa 1900—1920.
4.
Craftsman Style Residential — Circa 1905—1930.
Townhouse Development - Any attached townhouse development should utilize an architectural design that is compatible with, or similar to a residential design listed above. Other designs are appropriate when key elements are taken into consideration, such as porches, windows, doors, roofs, materials, and overall design, and each unit is designed in a manner that fits with the overall character of Old Town. When multiple units are attached, it is important that each unit stands apart by using individual porches, variations in exterior facade materials or colors, minor changes in front set-backs to create a human scale to the grouping of units and not a sense of one large building.
B.
Materials - The use of traditional building materials found in the area should be continued.
Brick and stone were the primary materials used for chimneys, porch supports and foundations. Brick and wood siding were also common residential façade materials, with painted, horizontal clapboard being the most popular. In each case, the distinct characteristics of the building material, including the scale of the material unit, its texture and finish, contribute to the historic character of a building.
The best way to preserve or rehabilitate older building materials is through well-planned maintenance. Wood surfaces, for example, should be protected with a good application of paint. In some cases, historic building materials may be deteriorated and repairing the material rather than replacing it is preferred. Frequently, damaged materials can be patched or consolidated using special bonding agents. In other situations, however, some portion of the material may be beyond repair and must be replaced. The new material should match the original in appearance. Rather than replace original materials, some property owners may consider covering them. Aluminum and vinyl siding, however, are not allowed.
1.
Materials shall appear to be similar to those used traditionally.
2.
Brick, cast stone and horizontal lap siding were the traditional materials of residential buildings. When horizontal siding is required a cementitious siding such as Hardie Plank may be utilized to provide a material that is more durable and requires less maintenance.
3.
A simple material finish is encouraged for a large expanse of wall plane.
4.
A matte, or non-reflective, finish is preferred.
5.
Polished stone should be avoided as a primary material.
6.
Color may be used to embellish building facade elements and enhance the attractive details of commercial buildings and should not disguise or overpower them. Colors should complement neighboring buildings and reflect a traditional color palette. Extremely bright, fluorescent or neon colors shall not be permitted as the primary color on the facades of buildings in the Old Town Design District. Only colors similar to or comparable to the palette adopted by the National Trust for Historic Preservation will be allowed.
C.
Architectural Elements - Include architectural elements similar to those seen traditionally such as porches, chimneys, roof brackets, decorative siding and bay windows.
1.
Roofs - The character of the roof is a major feature for most historic structures. When repeated along the street, the repetition of similar roof forms contributes to a sense of visual continuity for the neighborhood. The roof pitch, roof materials, size and orientation are all distinct features that contribute to the character of a roof. Gabled and hip forms occur most frequently in residential areas while flat roofs appear on older commercial buildings in the City. Although the function of a roof is to protect a structure from the elements, it also contributes to the overall character of the building. The Old Town Design District has various roof forms.
a.
In residential areas, most roof forms are pitched, such as gabled and hipped.
b.
Avoid altering the angle of an older roof. Instead, maintain the perceived line and orientation of the roof as seen from the street.
c.
Retain and repair roof detailing.
d.
If a new roof is necessary, try to match the color, material, and pattern of the old as closely as possible.
e.
Water from downspouts should drain away from the building properly. If this is not possible, a downspout should empty onto a metal or concrete splash block that slopes downward and away from the building.
2.
Porches - Many residential styles have a porch as a prime feature of the front facade. A porch protects an entrance from rain and provides shade in the summer. It also provides a sense of scale to the building and provides a space for residents to sit and congregate. A porch provides stylistic details to the house, and in some cases is an integral part of an architectural style. Because of their historical importance and prominence as character-defining features, porches should be preserved, and they should receive sensitive treatment during exterior rehabilitation. Porches vary as much as architectural styles. They differ in height, scale, location, materials and articulation. Some are simple one-story structures, while others may be complex with elaborate details and finishes. These elements often correspond to the architectural style of the house and therefore the building's design character should be considered before any major rehabilitation work is begun.
a.
Maintain the existing location, shape, details, and columns of the porch.
b.
Missing or deteriorated decorative elements should be replaced with new wood, milled to match existing elements. Match the original proportions and spacing of balusters when replacing missing ones.
c.
Unless used historically, wrought iron porch posts and columns are inappropriate.
d.
Enclosing a porch with opaque materials that destroy the openness and transparency of the porch is inappropriate. When a porch is enclosed or screened, it shall be done with a clear transparent material. This material should be placed behind porch columns.
C.
Establish a sense of scale in buildings and streetscape design that residents and pedestrians can enjoy.
1.
Homes should reflect setbacks, heights and lot coverages of existing homes on the block face.
2.
Landscaping can be used to help create sense of s streetscape design
D.
Minimize the visual impacts of automobiles.
1.
Parking should be in the rear.
2.
Garage doors should not face the street unless on a detached garage setback from the home.
E.
Strengthen the pedestrian network of sidewalks and paths.
The design guidelines focus on principles for rehabilitation and infill of commercial and mixed-use projects to reinforce the existing building fabric and enhance the pedestrian environment. To do so, they draw upon principles established in traditional commercial buildings. While these are the majority of property types that will be built in the area, institutional facilities should be a part of the urban mix as well. These institutional facilities may include churches, schools, libraries, courts and governmental offices. Traditionally, buildings for these uses have contrasted with the framework of storefronts. An example is an historic courthouse: It stands apart from the rows of commercial buildings, framed by a lawn as a foreground. Its entrances are more prominent. While it stands apart as a structure, however, it clearly is a part of the downtown, with its entrances oriented to the street and walkways promoting pedestrian use. This helps to convey its civic function as a gathering place. At the same time, the basic principles of urban design outlined in this document should still apply. Among them are the key principles below.
A.
Institutional facilities should be located such that they encourage pedestrian traffic to nearby downtown businesses.
B.
Institutional facilities should be designed to reinforce the downtown fabric of streets and sidewalks but may have increased setbacks for courtyards, plazas and landscaping to demonstrate the institutional importance to the community.
C.
Convenient pedestrian connections should link abutting Institutional buildings.
D.
The edges of an Institutional property should be inviting to pedestrians.
E.
The visual impacts of automobiles should be minimized.
F.
Primary entrances should face the street, not to parking lots.
G.
A sense of human scale should be conveyed.
H.
Impacts on adjacent historic resources should be minimized.
I.
Outdoor spaces designed for public use should be provided.
The Old Town Design District and Old Town Center Design district both contain a significant number of structures that are important to the original fabric and history of the community. Special consideration should be given to preserve these buildings and utilize them whenever possible. Utilization of these buildings often requires additions and alterations to adapt a residential structure into a commercial building or a commercial building into a residential use and should be done carefully so not to visually impact the significant nature of the original building.
A.
Design of Alterations - Alterations may be considered for historic buildings; however, alterations should occur in a manner that will not diminish the historic integrity of the property and they should be reversible for future property owners.
B.
Additions - Many buildings have experienced additions over time, as need for additional space occurred, particularly with a change in use. An historic addition typically was subordinate in scale and character to the main building. The height of the addition was usually positioned below that of the main structure and it was often located to the side or rear, such that the primary facade remained dominant. An addition was often constructed of materials that were similar to those in use historically. In some cases, owners simply added stories, creating more usable space without increasing the footprint of the structure. This tradition of adding on to buildings is anticipated to continue. It is important, however, that new additions be designed in such a manner that they maintain the character of the primary structure.
C.
Adaptive use - The adaptive use of a residence for a commercial or office use is a frequent occurrence in Old Town. However, when such adaptations must occur, they should be designed to have the least impact on the historic and residential character of a neighborhood. Although used for commercial purposes, these adapted properties should not be commercial in character. This means that the overall form of a building (with a sloping roof) and the landscaped front lawn should not be altered. Parking should be located to the rear or side of the structure.
This Section presents design guidelines for alterations and additions to existing buildings and should be used in conjunction with individual building elements that are influential to the overall character of Old Town. When the elements are appropriately used in combination buildings will reflect an appropriate look and feel that is consistent with Old Town. Within each element are individual goals and design guidelines statements upon which the City will base its decisions as to the appropriateness of any new or remodeled structure.
A.
Alterations - Design an alteration to be compatible with the original character of the property.
1.
Avoid alterations that would damage historic features such as original materials, windows, doors, entries, rooflines or architectural elements.
2.
Avoid alterations that would hinder the ability to interpret the design character of the original building.
3.
Alterations that seek to imply an earlier period than that of the building are inappropriate.
4.
Alterations should not damage original building features. For example, mounting a sign panel in a manner that causes decorative moldings to be chipped or removed would be inappropriate.
B.
Commercial Additions - The visual impacts of an addition to a commercial building should be minimized. Two distinct types of additions are considered to be appropriate, ground level or rooftop.
1.
Ground Level Additions - A ground-level addition that involves expanding the footprint of a structure should be to the rear or side of a building. This will have the least impact on the character of a building, but there may only be limited opportunities to do this.
a.
An addition shall be compatible in scale, materials and character with the main building.
b.
An addition shall relate to the building in mass, scale and form. It should be designed to remain subordinate to the main structure.
c.
An addition to the front of a building is inappropriate. However, where a building is set back from the front property line, the first consideration for the placement of an addition should be to fill the gap between the existing building and sidewalk. This will maintain the consistent "street wall" desired in the Old Town Center Design District.
d.
An addition shall not damage or obscure architecturally important features. For example, loss or alteration of a cornice line should be avoided.
2.
Roof Additions - An addition to the roof may be simple in character and set back substantially from the front of a building. In addition, the materials, window sizes and alignment of trim elements on the addition should be compatible to those of the existing structure. An addition may be made to the roof of a commercial building if it does the following:
a.
Is set back from the primary, character-defining facade, to preserve the perception of the historic scale of the building.
b.
Its design does not detract from the historic facade.
c.
Is distinguishable as new, albeit in a subtle way.
3.
Front Addition — Another option is to design an addition to the front wall plane of the existing building. This option may only be considered on a "newer" or more contemporary building that was originally set back from the front property line or sidewalk edge.
C.
Residential Additions - An addition to a residential structure should be compatible with the primary building. An addition to a structure can radically change its perceived scale and character if inappropriately designed. When planning an addition, consider the effect the addition will have on the building itself and keep the size of the addition small, in relation to the main structure. If an addition must be larger, it should set apart from the main structure and connected with a smaller linking element. A design for a new addition that would create an appearance inconsistent with the character of the building, especially an historic one, is discouraged. The effect the addition on the character of a street or neighborhood, as seen from the public right-of-way, is also important. For example, a side addition may change the sense of rhythm established by side yards in the block. Locating the addition to the rear could be a better solution in such a case.
RESIDENTIAL ADDITION
1.
Design a new addition such that the original character can be clearly seen. In this way, a viewer can understand the history of changes that have occurred to the building. An addition shall be compatible in scale, materials and character with the main building.
2.
An addition should be made distinguishable from the original building, even in subtle ways, such that the character of the original can be interpreted.
3.
Creating an offset in the foundation between the original and new structures may help to define an addition.
4.
A new trim board applied at the connection point between the addition and the original structure can help define the addition.
5.
Place an addition at the rear of a building or set it back from the front to minimize the visual impacts.
6.
Locating an addition at the front of a structure is inappropriate.
7.
Do not obscure, damage, destroy or remove original architectural details and materials of the primary structure.
8.
An addition shall relate to the historic building in mass, scale and form. It should be designed to remain subordinate to the main structure.
9.
If a residential addition would be significantly larger than the original building, consider separating it from the primary building, when feasible, and then linking it with a smaller connecting structure.
10.
An addition should be simple in design to prevent it from competing with the primary facade.
11.
Consider adding dormers to create second story spaces before changing the scale of the building by adding a full second floor.
12.
The roof form of a new addition shall be in character with that of the primary building.
13.
Typically, gable, hip and shed roofs are appropriate for residential additions. Flat roofs are appropriate for commercial buildings.
14.
Repeat existing roof slopes and materials.
15.
If the roof of the primary building is symmetrically proportioned, the roof of the addition should be similar.
D.
Residential to Commercial Conversions - When adapting a residence to a commercial use, respect the residential character of the building. Seek uses that are compatible with the historic character of the building. The openness of a front yard should be preserved. Converting a building to a new use that is different from that which its design reflects is considered to be "adaptive use." When residential use ceases to be viable, the first preference is to choose new uses that minimize the negative changes in building features. Often there are new uses that are inherently less disruptive to residential structures such as a bed and breakfast, professional offices, small specialty restaurants and personal service businesses.
1.
Seek uses that are compatible with the historic character of the building.
2.
The primary goal should be preserving the original residential character, appearance and scale of the structure.
3.
Avoid altering porches and original windows and doors.
Originally inspired by farmhouses found in Northern Italy, this blending of classical and romantic features became one of the most popular of the picturesque styles in the United States. Because of its ornate details, such as bracketed cornices, this style was easily adapted to simple buildings and storefronts. As the details and features of this style were capable of being interpreted in wood, masonry or iron, it was also very adaptable in the various regions of the country. With this adaptability and the sensibilities of the times, its popularity grew for commercial buildings.
Characteristics
•
Tall, narrow, double-hung windows, often with arched or round arch heads (commonly referred to as "punched" windows as opposed to "ribbon" windows)
•
Windowpanes are either one-over-one or two-over-two
•
Protruding sills
•
Quoins at building corners
•
Double doors with glass panels
•
Transom, often curved, above the front door
•
Brackets, modillions and dentil courses
•
Flat roof with ornate cornices
•
Decorative paired brackets
Usually between one and four stories, the vernacular commercial building is divided horizontally into two distinct bands. The first floor is more commonly transparent, so goods can be displayed, while the second story is usually reserved for residential or storage space. A steel beam that spans the glass opening typically supports the upper floor. However, many one-story examples also exist. A kick plate is found below the display window while above the display window, a smaller band of glass, a transom, is seen. Also, the main door is frequently recessed.
These buildings have stone and brick facades. Ornamental detail exists, but is simple, limited to a shallow molding such as a cornice. Some cornices were made of masonry, while others were made of stamped metal. Many carry simplified Italianate detailing. In essence, these buildings lack distinctive detail, contrasting them with the revival styles that were also popular during this period.
Characteristics
•
Cast-iron supported storefronts
•
Large display windows
•
Transom lights
•
Kickplate
•
Recessed entry
•
Tall second story windows
•
Cornice
Decorative detailing is one of the main characteristics of this architectural style. Houses typically have irregular shaped, hipped roofs often with steep pitches. Typically, the buildings are asymmetrical in shape with one dominant front-facing gable. Extensive detailing is utilized to avoid a smooth-wall appearance. Detailing can take multiple forms such as patterned shingles; "gingerbread" type spindlework; and cutaway bay windows and towers. Porches are partial or full-width and often extend along one sidewall. Spindlework is also used extensively on porches and friezes.
Characteristics
•
Steeply pitched, hipped roofs of irregular shape
•
Dominant front-facing gable
•
Irregular shapes utilizing cutaway bay window and towers
•
Extensive detailing to avoid a smooth-walled appearance
•
Asymmetrical faced with partial or full-width porch
•
Extensive use of spindlework on porches and friezes
This style is defined by the presence of Victorian decorative detailing on simple folk house forms and are typically much less elaborate than the Victorian styles that they mimicked. The primary areas for the detailing are the porch and cornice line. There are a number of subtypes but the most common one in Old Town is the asymmetrical gable front with wing and covered porch. Porch supports are commonly either turned spindles or square posts with beveled corners.
Characteristics
•
Simple folk house form
•
Gable front with wing
•
Single story with covered porch
•
Spindle work porch detailing
This style is sometimes referred to as the Prairie Box or American Foursquare. It has a simple square or rectangular plan, low pitched hipped roof and symmetrical facade. One story wings, porches or carports are common and subordinate to the principal two story mass. The entrance is often a conspicuous focal point of the facade. Hipped dormers are common as are full-width front porches. Characteristic horizontal decorative elements often consist of contrasting caps on porch or balcony railings as well as piers and chimneys. Other elements include contrasting wood trim between stories and horizontal siding.
Characteristics
•
Low-pitched roof usually hipped.
•
Widely overhanging eaves
•
Two stores with one story wings or porches
•
Eaves, cornices, and facade detailing with horizontal lines
•
Massive, square porch supports
•
Hipped dormers
This particular style originated in California and is often referred to as a bungalow, especially in the single-story version. Front gabled porches and house are most common. Porches may be either full or partial width and may be covered by either the main roof or a separate, extended roof. Single story is the most common, but one and one half are not uncommon. Columns for porch roofs are typically shorter, square upper columns resting upon more massive piers.
Characteristics
•
Low-pitched, gabled roof (occasionally hipped).
•
Wide, unenclosed eave overhang
•
Roof rafters usually exposed
•
Decorative beams or braces commonly added under gables
•
Full or partial width covered porches
•
Tapered square porch columns
This Section presents guidelines for the design of new and renovated signs in Lewisville's Old Town Design Districts. These guiding principles help to frame the prescriptive requirements of the Old Town Sign Ordinance. Within each category, individual policies and design guidelines are presented, which the Old Town Design Review Committee may reference in determining the appropriateness of the work proposed.
Signs are an integral part of the built environment and if designed well, can provide direction, encourage business growth, and enhance an area's image. If designed poorly, they can confuse viewers, stifle business, and detract from the appearance and perception of the public realm.
A sign typically serves two functions: to attract attention and to convey information, essentially identifying the business or services offered within a building. Architectural elements of a building, window displays, outdoor seating, and other streetscape elements can also work to supplement signage. For example, the building front alone can serve an attention-getting function, allowing the sign to be focused on conveying information.
In the determination of appropriate sign design, the following principles should be observed:
A.
Signs are subordinate to the building architecture.
B.
Signs are part of a larger streetscape.
C.
Signs are intended for different speeds of traffic.
Consider the building front as part of an overall sign program. Signs should be coordinated within the overall facade composition so that it is in proportion to the building and does not dominate the appearance.
Additionally, a master sign plan for the entire building should be developed to guide design decisions for individual signs. This is especially important where the use of contemporary building forms and styles in conjunction with several colorful, attention-getting signs are the norm. Typical "strip-commercial" development patterns are inappropriate in Old Town.
A sign should appear to be in scale with the facade. Locate signage on a building so that it emphasizes design elements of the facade. Mount signs to fit within existing architectural features and use the shape of the sign to reinforce the horizontal lines of moldings and transoms seen from the street.
The placement or location of a sign is perhaps the most critical factor in maintaining the order and integrity of Old Town. Consistent placement of signs according to building type, size, location, and even materials, creates a visual pattern that its audience can easily interpret and utilize to the mutual benefit of merchants, tourists, and customers.
A.
Color - The color palette for signs should be drawn from those approved by the National Trust for Historic Preservation. Colors should relate to each other as well as their surroundings. For example, a very light or white background on a sign may be too stark for its context and compete with the architectural elements of the building. Also limit the number of colors used on a sign. In general, no more than three to five colors are recommended.
B.
Typeface - Typical typefaces found in Old Town are constructed from serif-style fonts. Serif-style fonts tend to be more legible at larger sizes while sans-serif fonts are more appropriate for supporting detail text. A mixture of fonts and lettering sizes can add interest to a sign, provided that no more than two are used. Avoid hard-to-read or overly intricate typeface styles.
C.
Shape - The signs in Old Town should have detailed edges. For example, rectangular signs may have notched or rounded edges, and should relate to the architectural character of the building. An elliptical sign may be more appropriate as a projecting sign than as a wall sign if the shape of the sign is discordant with the architecture of the building. However, the same elliptical sign could be used to highlight the rhythm of architectural elements by locating it over a column or centered within a structural bay.
D.
Materials - Sign materials should be consistent with those listed in the Sign Guidelines. Additionally, monument signs should reflect the architectural style of the buildings on the same lot. For example, a monument sign for a brick building should be made of brick as well. Plastic is not an allowed signage material in Old Town.
E.
Lighting Type - Lighting types should also be consistent with those listed in the Sign Ordinance. Period style lighting fixtures should be considered. For projecting or wall signs, goose-neck style fixtures are recommended.
F.
Legibility - Care should be given to the intended audience of a sign and its readability. Positive contrast, or lighter text on a darker background, tends to be easier to read. Negative contrast, or darker text on a lighter background, can sometimes cause the lettering to develop a fuzzy edge.
G.
Variety and Creativity - Variety in sign design should be encouraged. Most businesses choosing to locate in Old Town, particularly in the Old Town Center, are small family-owned enterprises each with their own personalized way of operating. This social context offers the community an opportunity to develop signs that are home-grown and unique. Quality and craftsmanship should be a part of every sign in Old Town. Using a symbol for a sign is encouraged. Symbols add interest to the street, can be read quickly, and are remembered better than written words.
H.
Sign Quality - Business signage can create a potential customer's first impression and should incorporate the same level of care and quality found inside the business. A quality sign typically includes a balance of font styles and sizes, colors, graphics, durable materials, and supports the building architecture.
I.
Audience - Sign design should consider the viewer or "end user" of the sign. Larger signs are more appropriate for faster moving traffic, such as vehicles, where the time the viewer has to identify the sign, understand it, and react to it is shorter than pedestrian traffic. For vehicular-oriented signs, greater spacing between text and larger lettering is appropriate. For pedestrian-oriented signs, text may be smaller and still achieve legibility.
J.
Sign Hierarchy - Signs should work together in a hierarchical relationship. The larger, primary signs of a business such as a monument sign or a wall sign would most likely express the main idea of the business, including the name and perhaps an iconic graphic representing the industry or character of the place. Secondary signs, such as window and hanging signs, strengthen the overall theme offering supporting information. For example, a cafe may contain the name of the business on the wall sign and then in smaller lettering on the window, list items offered (e.g., coffee, tea, pastries, etc.). In this way, the information is organized in the same format it is processed by the viewer: first locating the destination, then selecting options at that location. Duplicating information on the same facade does not utilize the allowable sign area to its full potential and is discouraged in Old Town.
EXAMPLE OF INFORMATION HIERARCHY ON BUILDING
K.
Historic Context - Traditionally, a variety of signs existed within the Old Town District:
1.
Small, freestanding signs mounted on a pole or post; located near the sidewalk where the primary structure or business was set back from the street (e.g., an area with residential character), and printed on both sides.
2.
Medium-sized, square or rectangular-shaped signs that projected from the building above the awnings or canopies, printed on both sides.
3.
Small horizontally-oriented rectangular signs that protruded from the building below the awnings or canopies but above pedestrians' heads, printed on both sides.
4.
Medium to large, horizontally oriented rectangular signs attached flat against the building, above and/or below the awnings, printed on one side only.
5.
Window signs, painted on glass, used at the street level and on upper floors.
EXAMPLE OF A HANGING SIGN
L.
Signs that were historically mounted on a building's exterior advertised the primary business or service. Typically, this use occupied a street-level space and sometimes upper floors as well. In the case of a large structure that included several businesses on upper floors, the name of the building itself was displayed on an exterior sign and tenants relied on a directory placed at the street level. Signs were designed to fit within architectural features and in many cases, were mounted flush above the storefront, just over moldings. Others were located between columns or centered in "panels" on a building face. This method enabled the viewer to see the design and character of individual structures. Generally, signs allowed in Old Town fall into one of three categories: primary, secondary, and temporary.
1.
A primary sign represents the owner's largest sign expense and is likely the most important of the sign types. Only one primary sign is allowed per business, per building.
2.
Secondary signs are utilized in addition to the primary building sign and generally tied to an architectural feature. Typically, a secondary sign is an awning, projecting sign or window sign. The secondary sign is generally intended to capture the attention of a pedestrian walking on the sidewalk, while the primary sign's audience is typically driving past in a vehicle.
3.
Tertiary signs are also intended for pedestrian view and may consist of hanging signs, sandwich boards, or restaurant menu cases. These signs are allowed for each tenant of a building.
A.
Awning, Canopy, or Marquee Signs - Awning and canopy structures should be of a visually uniform style on a building. For example, it would be inappropriate to have metal canopies, canvas awnings, and bull nose-style awnings on the same facade or along two facades sharing a corner. However, different styles of awning or canopy structures could be located on opposite facades where they cannot be seen at the same time.
B.
Wall Signs - In many cases, turn-of-the century building types common in Lewisville have a sign band. This is the ideal location for the primary building sign. The sign band is typically located above the transom and below the second-floor windows. When utilizing the sign band as the sign placement location, it is important to respect the borders. The sign should not overlap or crowd the top, bottom, or ends of the sign band. When feasible, place a wall sign so that it aligns with others on the block.
C.
Window Signs and Displays - While window displays are not reviewed by the OTDRC, their use is very important to retailers. The attractiveness of a display is likely the highest contributing factor to whether or not a pedestrian will enter a store, and its design should be carefully planned.
The OTDRC does review and regulate signs within a store that are obviously intended to be viewed through the window.
Use of reflective, tinted, or coated glass is not appropriate for windows and doors of ground floor commercial buildings in Old Town. Additionally, window coverings should not be used to obscure transparency.
EXAMPLE OF A WINDOW DISPLAY
D.
Hanging Signs - A small hanging sign may be easier for a pedestrian to read than other sign types, and is encouraged. Hanging signs should be located near the business entrance, just above the door or to the side of it. A hanging sign should be mounted perpendicular with the building facade.
EXAMPLE OF A HANGING SIGN
E.
Projecting Signs - Projecting signs should be larger than hanging signs, mounted higher, and centered on the facade or positioned at the corner of a building. For buildings located at a street intersection, a projecting sign not exceeding 30 square feet may be considered at the corner facing the street intersection, provided there are no projecting signs on the building facades facing the intersecting streets.
EXAMPLE OF A PROJECTING SIGN
F.
Multi-Tenant Wall Signs - Where several businesses share a building, the signs should be coordinated. If several smaller signs are used, they should be located in harmony with the building architecture, taking into account bay spacing, windows, or other elements that establish an architectural rhythm. Use similar forms or backgrounds for the signs to tie them together visually and make them easier to read. Consistency among the signs should be balanced with sign originality to maintain legibility and character.
G.
Low-Profile/Monument Signs - Low-profile/monument signs should match the architectural style and material of buildings on the same lot.
EXAMPLE OF A MULTI-TENANT BUILDING
EXAMPLE OF A LOW-PROFILE/MONUMENT SIGN