LAND USE REGULATIONS
The purpose of this Article is to indicate which land uses may locate in each zoning district and under what requirements; and which land uses may not locate therein. Certain land uses may locate in a given district as a matter of right upon compliance with special regulations for such a land use. A further distinction is made for land uses which may locate in a given district only upon obtaining a conditional use or temporary use permit.
The allowable land uses for each zoning district are established in Article II of this Chapter. Detailed descriptions and regulations for uses are found in Sections 10.03.06 through 10.03.30. No land use is permitted or permissible on a property unless it can be located on it or implemented in full compliance with all of the applicable standards and regulations of this Chapter or unless an appropriate variance has been granted pursuant to Section 10.10.51. For land uses not specifically listed, the Zoning Administrator shall make an interpretation to identify a comparable use or determine if an amendment to this Chapter is necessary.
(1)
Principal Land Uses Permitted by Right
Principal land uses listed as permitted by right (designated by the letter "P" in Section 10.03.05) are permitted per the general land use requirements of this Article; per the density, intensity, and bulk regulations of the specific zoning district in which they are located; per any additional requirements imposed by applicable overlay districts; per all other applicable requirements of this Chapter; and per any and all other applicable City, county, state, and federal regulations.
(2)
Principal Land Uses Permitted as Conditional Uses
Principal land uses allowed only with a conditional use permit (designated by the letter "C" in Section 10.03.05) may be permitted subject to all the requirements applicable to uses permitted by right as listed in Subsection (1), above, plus any additional requirements applicable to that particular land use imposed as part of the conditional use permit process established in Section 10.10.32. Except for uses approved under a general development plan and specific implementation plan in a planned unit development (see Section 10.10.45), all uses requiring a conditional use permit shall comply with the procedural requirements of Section 10.10.32.
(3)
Accessory Land Uses
Accessory land uses are allowed subject to all the requirements and exceptions applicable to principal land uses permitted by right as listed in Subsection (1), above. Accessory land uses allowed only with a conditional use permit are subject to all the requirements and exceptions applicable to principal land uses requiring a conditional use permit as listed in Subsection (2), above. Accessory land uses shall also comply with the following listed regulations.
(a)
No accessory structure or use shall be constructed on any lot prior to the establishment of an allowable principal use, unless otherwise stated in this Chapter.
(b)
Accessory land uses and structures shall not be located within the required front or street yard setback. This applies to corner, single-frontage, and double-frontage lots.
(c)
In no instance shall an accessory structure, unfinished cellar, unfinished basement, tent, or recreational trailer be used as a residence.
(4)
Temporary Land Uses
Temporary land uses permitted by right (designated by the letter "P" in the Table of Land Uses in Section 10.03.05) are permitted on a temporary basis subject to permitting requirements of Section 10.10.30 of this Chapter. Temporary land uses permitted only with a conditional use permit (designated by the letter "C" in the Table of Land Uses) may be permitted subject to temporary use and conditional use permitting requirements of Sections 10.10.32.
All uses of land initiated within the jurisdiction of this Chapter on, or following, the effective date of this Chapter shall comply with all of the provisions of this Chapter.
(1)
Land Use Regulations and Requirements
All uses of land shall comply with all the regulations and requirements of this Chapter. Such regulations directly relate to the protection of the health, safety, and general welfare of the residents of the City of Middleton.
(2)
Density, Intensity, and Bulk Regulations and Requirements
All development and use of land shall comply with all the applicable requirements of Articles II and IV of this Chapter.
(3)
Overlay Zoning District Requirements
All land use and/or development of land shall comply with all the regulations and requirements of any applicable Overlay Zoning District (see Article II).
(4)
Performance Standards
All development of land shall comply with all applicable requirements established in Article VI.
(5)
Exterior Building Design Standards
All new, remodeled, and expanded residential and nonresidential development shall comply with all applicable building design guidelines as required in Article VII of this Chapter.
(6)
Landscape Regulations
All development of land shall comply with all the regulations and requirements of Article VIII pertaining to the provision of landscaping and bufferyards. Such requirements address issues such as minimum required landscaping of developed land and minimum required provision of bufferyards between adjoining zoning districts which are directly related to the effective bulk of a structure.
(7)
Signage Regulations
All land use and/or development of land shall comply with all requirements of Chapter 22 of the City Municipal Code, pertaining to the type and amount of signage permitted on property. Such requirements address issues such as the maximum area of permitted signage and the number and types of permitted signage.
(8)
Number of Buildings Per Lot
In all zoning districts a maximum of one (1) principal building shall be permitted on any one (1) lot, with the exception of the following:
(a)
Group or Large Developments (Section 10.06.02).
(b)
Planned Developments (Section 10.02.70).
(c)
Manufactured Home Parks (Section 10.03.06).
(d)
Temporary buildings (Section 10.03.30).
(9)
Mixing Residential and Nonresidential Uses in a Building
With the exception of mixed use buildings described under Section 10.03.08, and home occupation land uses, no building containing a nonresidential land use shall contain a residential land use.
(10)
Number of Land Uses per Building
Any number of land uses that are permitted by right can be combined within a building, per the limitations of those individual uses. Any number of land uses that require a conditional use permit can be combined within a building, per the limitations of those individual uses and with each approved through the conditional use process (Section 10.10.32).
(11)
Accessory Uses
Accessory uses may be allowed where they comply with the following conditions and requirements:
(a)
Separation from Principal Structures
Detached accessory buildings shall be separated as regulated by the Uniform Dwelling Code. The "separation" distance between a dwelling unit and accessory structure is determined by measuring the perpendicular distance from wall to wall of the structures. Minor attachments such as handrails, latticework, trellises, or pergolas may be located in the required separation area and do not render the structures attached for setback purposes. All accessory buildings and structures on a lot are subject to the maximum impervious surface ratio requirements for each zoning district (Article II).
(b)
Conversion of Accessory Structures to Dwellings
The conversion of any accessory structure into a dwelling so as to accommodate an increased number of dwelling units or families, shall be permitted only within a district in which a new building for similar occupancy would be permitted under this Chapter. The resulting occupancy will comply with the requirements governing new construction in such district, including minimum lot size, lot area per dwelling unit, building of lot coverage, dimensions of yards and other open spaces, and off-street parking.
(c)
Accessory Structures without Principal Structure
1.
No accessory structure shall be erected or constructed prior to the erection or construction of the principal structure, paved areas, or below grade improvements.
2.
When an accessory structure becomes the only structure on a lot as the result of demolition of the principal building, the accessory structure shall be demolished within eighteen (18) months of the demolition of the principal building. The Zoning Administrator shall have the ability to extend this period by an additional eighteen (18) months if the property owner has a concept plan, as approved by the Zoning Administrator, to build a new principal building or otherwise redevelop the site in a manner that uses the accessory structure.
(12)
Group and Large Development Requirements
A Group or Large Development may include any of the land uses in this Chapter that is permitted by right or by conditional use permit in the subject zoning district. All uses and/or development of land within a Group or Large Development shall comply with all requirements of Section 10.06.02.
(13)
Planned Development Requirements
All uses and/or development of land within a planned development shall comply with all requirements of Section 10.02.70 and 10.10.45.
(14)
Nonconforming Uses, Lots, Structures, and Site Requirements
(a)
Land uses not in conformance with the requirements of the applicable zoning district shall be subject to the special limitations and exceptions as established in Article V.
(b)
Land uses located on substandard lots or on nonconforming lots, nonconforming sites, or in nonconforming structures shall comply with all the regulations and requirements of Article V.
(15)
Site Plan Review Required
All development involving physical modifications to a site including but not limited to new developments, building additions, alterations, or removal; and additions to paving are subject to site plan review and approval in accordance with Section 10.10.43 of this Chapter, except for single-family and two-family dwelling units on individual lots in any zoning district which need only comply with Section 10.10.43(3).
(16)
Procedural Regulations and Requirements
All land use and/or development of land shall comply with all requirements of Article X, pertaining to the procedures necessary to secure review and approval of land use and/or development. Such regulations and restrictions address both procedural and technical requirements.
(17)
Demolition of a Principal Structure
Where a principal structure has been removed, all driveways, paved areas, and below grade improvements on the lot shall be removed. All public utilities shall be abandoned at their connection with the main unless written exception is obtained from the City Engineer.
(Ord. No. O1657, §§ 74, 75, 6-17-2025)
The land use categories employed by this Chapter are defined in Sections 10.03.06 through 10.03.30. Land use categories which are not listed in this Chapter are not necessarily excluded from locating within any given zoning district. Section 10.10.50 empowers the Zoning Administrator to make interpretations on matters regarding specific land use proposals which are not addressed by this Chapter.
The Table of Land Uses on the following pages is provided as a convenience for the City and the general public. Where there are conflicts between the text of this Chapter and the Table of Land Uses, the text shall prevail.
(Ord. No. O1657, § 76, 6-17-2025)
(1)
Apartment
This dwelling unit type consists of a single structure with three (3) or more individual attached dwelling units which take access from a shared entrance or hallway.
Regulations
(a)
In the case where any dwelling unit is under separate ownership, evidence that covenants specifying respective obligations with regard to any common structures, such as the shared wall, roof, and other inseparable improvements, is required.
(b)
All development shall comply with the requirements of Chapter 11, 19, and 23 of the City Middleton Municipal Code.
(c)
See Section 10.07.20 for multi-family design standards and Section 10.06.41 for on-site recreation space requirements.
(d)
Group Developments shall meet the standards of Section 10.06.02.
(e)
Minimum and maximum required parking: See Section 10.06.06.
(f)
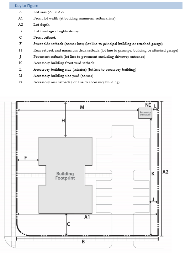
The following figure is intended to provide a graphic depiction of the setback and dimensional requirements for Apartment land uses. Specific requirements for Apartments can be found in Article II under the density, intensity, and bulk requirements for each residential zoning district.
(2)
Boarding House Living Arrangement
A residential land use where occupancy of a dwelling unit is shared by up to eight (8) unrelated adult individuals. Boarding House Living Arrangements are a social configuration of occupants and must accompany one (1) or more of the other Residential Land Use (Section 10.03.06) physical configurations.
(a)
Boarding House Living Arrangements are distinct from Individual Family Living Arrangements (occupied by no more than one-family), which are regulated as separate land use types under Sections 10.03.06(5).
(b)
Facility shall be surrounded by a bufferyard with a minimum opacity of 0.60 along all property borders abutting residentially zoned property.
(c)
Boarding House Living Arrangements require a license and an annual on-site inspection to confirm full compliance with all zoning and building code requirements.
(d)
Outdoor storage shall be restricted to rear yards.
(e)
Minimum and maximum required parking: See Section 10.06.06.
(3)
Duplex
This dwelling unit type consists of two (2) separate Single-Family Dwelling Units, each having a private individual exterior entrance or private interior entrance from a shared foyer, and no shared internal access other than entry foyers and halls. Similar to Twin Houses, Duplexes are attached side-by-side units, each with a ground floor and roof. Unlike Twin Houses, the two (2) dwelling units in a Duplex are located on one (1) lot.
Regulations
(a)
In the case where any dwelling unit is under separate ownership, recorded deed restrictions or covenants specifying respective obligations with regard to any common structures, such as the shared wall, roof, and other inseparable improvements, is required.
(b)
The common wall between the units shall be a one (1) hour fire wall extending from the basement floor to flush against the underside of the roof.
(c)
This dwelling unit type may not be split into additional residences.
(d)
Each duplex shall provide a separate public water lateral, sanitary sewer lateral, and electric utility service to each of the two (2) dwelling units in the structure.
(e)
All development shall comply with the requirements of Chapter 11, 19, and 23 of the City Middleton Municipal Code.
(f)
See Section 10.07.10 for design standards for two-family uses and Section 10.06.43 for utility access standards for residential uses.
(g)
Minimum and maximum required parking: See Section 10.06.06.
(h)
The following figure is intended to provide a graphic depiction of the setback and dimensional requirements for Duplex land uses. Specific requirements for Duplexes can be found in Article II under the density, intensity, and bulk requirements for each residential zoning district.
(4)
Individual Family Living Arrangement
A residential land use in which occupancy of a dwelling unit is no more than one-family or functional family. Individual Family Living Arrangements are a social configuration of occupants and must accompany one (1) or more of the other Residential Land Use (Section 10.03.06) physical configurations listed throughout this Section.
(a)
Individual Family Living Arrangements are distinct from Boarding House Living Arrangements, which are regulated as separate land use types under Sections 10.03.06(2).
(b)
Individual Family Living Arrangements must accompany one (1) or more of the other Residential Land Use (Section 10.03.06) physical configurations listed throughout this Section.
(c)
Minimum and maximum required parking: See Section 10.06.06.
Figure 10.03.06c: Number of Unrelated Adults Permitted by Land Use
(5)
Manufactured Home
A structure that is designed to be used as a dwelling with or without a permanent foundation and that is certified by the federal department of housing and urban development as complying with the standards established under 42 USC 5401 to 5425. See Section 10.03.06.
Regulations
(a)
No Manufactured Home may be split into more than two residences.
(b)
Within thirty (30) days of occupancy, the owner shall remove the axle and install skirting.
(c)
All development shall comply with the requirements of Chapter 11, 19, and 23 of the City of Middleton Municipal Code.
(d)
The building design standards of Section 10.07.10 shall not apply.
(e)
Minimum and maximum required parking: See Section 10.06.06.
(f)
The following figure is intended to provide a graphic depiction of the setback and dimensional requirements for Manufactured Home land uses. Specific requirements for Manufactured Homes can be found in Article II under the density, intensity, and bulk requirements for each residential zoning district.
Figure 10.03.06d: Manufactured Home
(6)
Manufactured Home Park
This land use is a form of residential development which is exclusively reserved for individually sold or rented building pads located on a single parcel containing Manufactured Homes. Each Manufactured Home must meet the requirements listed under Section 10.03.06(6), above.
Regulations
(a)
Development shall be located so as to blend with adjacent residentially zoned areas to the greatest extent possible.
(b)
No access shall be permitted to local residential streets, except to the internal roadways and streets.
(c)
All development shall comply with the requirements of Chapter 11, 19, and 23 of the City Middleton Municipal Code.
(7)
Manufactured Home Subdivision
This land use is a form of residential development which is exclusively reserved for individually sold lots containing Manufactured Homes. Each lot and Manufactured Home must meet the requirements listed under Section 10.03.06(6), above.
Regulations
(a)
Development shall be located so as to blend with adjacent residentially zoned areas to the greatest extent possible.
(b)
No access shall be permitted to local residential streets, except to the internal roadways and streets.
(c)
All development shall comply with the requirements of Chapter 11, 19, and 23 of the City Middleton Municipal Code.
(d)
Specific requirements for Manufactured Home Subdivisions can be found in Article II under the density, intensity, and bulk requirements for each residential zoning district.
(8)
Multiplex
This dwelling unit type consists of three or more individual attached dwelling units which have private, individual exterior entrances and are located on one lot.
Regulations
(a)
In the case where any dwelling unit is under separate ownership, evidence that covenants specifying respective obligations with regard to any common structures, such as the shared wall, roof, and other inseparable improvements, is required.
(b)
All development shall comply with the requirements of Chapter 11, 19, and 23 of the City Middleton Municipal Code.
(c)
Group Developments shall meet the standards of Section 10.06.02.
(d)
See Section 10.07.20 for multi-family design standards, Section 10.06.41 for on-site recreation space requirements, and Section 10.06.43 for utility access standards for residential uses.
(e)
Minimum and maximum required parking: See Section 10.06.06.
(f)
The following figure is intended to provide a graphic depiction of the setback and dimensional requirements for Multiplex land uses. Specific requirements for Multiplexes can be found in Article II under the density, intensity, and bulk requirements for each residential zoning district.
(9)
Single-Family Dwelling Unit
This dwelling unit type consists of a fully detached Single-Family residence which is located on an individual lot. Single-Family dwelling units are designed for one-family and have no roof, wall, or floor in common with any other dwelling unit. A single-family dwelling that contains an in-family suite or accessory dwelling unit is still considered a single-family dwelling.
Regulations
(a)
The dwelling unit shall be a site-built structure built in compliance with the State of Wisconsin Uniform Dwelling Code (UDC), or may be a modular home as permitted by the UDC or that has received a Federal Manufactured Housing Certificate label.
(b)
The dwelling must be attached to a finished, permanent foundation, such as a poured concrete slab or basement meeting UDC requirements. All development shall comply with the requirements of Chapter 11, 19, and 23 of the City of Middleton Municipal Code.
(c)
See Section 10.07.10 for design standards for single-family dwelling units.
(d)
Minimum and maximum required parking: See Section 10.06.06.
(e)
The following figure is intended to provide a graphic depiction of the setback and dimensional requirements for single-family dwelling units. Specific requirements for single-family dwelling units can be found in Article II under the density, intensity, and bulk requirements for each residential zoning district.
Figure 10.03.06f: Single-Family Dwelling Unit
(10)
Townhouse
This dwelling unit type consists of attached structures, each having a private, individual access. This dwelling unit type may be located on its own lot or a shared lot. Each dwelling unit shares at least one (1) common wall with an adjacent dwelling unit.
Regulations
(a)
In the case where any dwelling unit is under separate ownership, recorded covenants specifying respective obligations with regard to any common structures, such as the shared wall, roof, and other inseparable improvements, are required.
(b)
Each townhouse shall provide a separate public water lateral, sanitary sewer lateral, and electric utility service to each of the dwelling units in the structure.
(c)
The common wall between the units shall be a one-hour fire wall extending from the basement floor to flush against the underside of the roof. Eaves, patios, and decks may have a zero setback from any shared lot line.
(d)
Group Developments shall meet the standards of Section 10.06.02.
(e)
All development shall comply with the requirements of Chapter 11, 19, and 23 of the City Middleton Municipal Code.
(f)
See Section 10.07.20 for multi-family design standards, Section 10.06.41 for on-site recreation space requirements and Section 10.06.43 for utility access standards for residential uses.
(g)
Minimum and maximum required parking: See Section 10.06.06.
(h)
The following figure is intended to provide a graphic depiction of the setback and dimensional requirements for Townhouse land uses. Specific requirements for Townhouses can be found in Article II under the density, intensity, and bulk requirements for each residential zoning district.
(11)
Twin House
This dwelling unit type consists of two (2) separate Single Family Dwelling Units, each having a private individual exterior entrance or private interior entrance from a shared foyer, and no shared internal access other than entry foyers and halls. Similar to Duplexes, Twin Houses are attached side-by-side units, each with a ground floor and roof. Unlike Duplexes, each dwelling unit in a Twin House is located on a separate lot (also known as a zero-lot line duplex).
Regulations
(a)
Recorded deed restrictions or covenants specifying respective obligations with regard to any common structures, such as the shared wall, roof, utility and other inseparable improvements, are required.
(b)
The common wall between the units shall be a one-hour fire wall extending from the basement floor to flush against the underside of the roof. Eaves, patios, and decks may have a zero setback from any shared lot line.
(c)
This dwelling unit type may not be split into additional residences.
(d)
Each twin house shall provide a separate public water lateral, sanitary sewer lateral, and electric utility service to each of the two dwelling units in the structure. See Section 10.06.43 for utility access standards for residential uses.
(e)
All development shall comply with the requirements of Chapter 11, 19, and 23 of the City Middleton Municipal Code.
(f)
See Section 10.07.10 for design standards for two-family uses.
(g)
Minimum and maximum required parking: See Section 10.06.06.
(h)
The following figure is intended to provide a graphic depiction of the setback and dimensional requirements for Twin House land uses. Specific requirements Twin Houses can be found in Article II under the density, intensity, and bulk requirements for each residential zoning district.
(12)
Two-Flat
This dwelling unit type consists of a single structure with two separate Single Family Dwelling Units, each having a private individual exterior entrance or private interior entrance from a shared foyer, and no shared internal access other than entry foyers and halls. Two-Flats are attached units within a single structure with one unit above the other.
Regulations
(a)
In the case where any dwelling unit is under separate ownership, evidence that covenants specifying respective obligations with regard to any common structures, such as the shared wall, roof, and other inseparable improvements, is required.
(b)
This dwelling unit type may not be split into more than two residences and remain a two-flat. A building with three or more residences is considered a multi-plex or apartment land use.
(c)
All development shall comply with the requirements of Chapter 11, 19, and 23 of the City Middleton Municipal Code.
(d)
See Section 10.07.10 for design standards for two-family uses and Section 10.06.43 for utility access standards for residential uses.
(e)
Minimum and maximum required parking: See Section 10.06.06.
(f)
The following figure is intended to provide a graphic depiction of the setback and dimensional requirements for Two-Flat land uses. Specific requirements for Two-Flats can be found in Article II under the density, intensity, and bulk requirements for each residential zoning district.
(Ord. No. O1657, §§ 77—87, 6-17-2025)
(1)
Live/Work Building
A multi-unit building in which each dwelling unit is occupied by the business operator of a commercial use (such as a shop, office, studio, or other work space) in the same structure. Both uses shall be occupied by the same resident/business operator. The commercial use may be connected to the residential use.
(a)
Each unit in the live/work building shall be the primary dwelling of the occupant.
(b)
The commercial use is subject to the regulations of the applicable land use category in Section 10.03.10. The commercial component of the live/work building is limited to the following land uses:
1.
Office.
2.
Personal or Professional Service.
3.
Indoor Sales or Service.
4.
Artisan Production Shop.
5.
Indoor Maintenance Service (Nonresidential).
(c)
Employees who are not residents of the unit are permitted.
(d)
Both uses are subject to the nonresidential density, intensity, and bulk requirements of Article II.
(e)
Minimum and maximum required parking: See Section 10.06.06.
(g)
Live/Work Buildings shall comply with the design standards for commercial and mixed-use land uses. See Section 10.07.30. See Section 10.06.41 for on-site recreation space requirements.
(2)
Mixed-Use Building
A building containing a mix of principal nonresidential land uses and principal residential land uses.
Regulations
(a)
This land use shall comply with all of the bulk and density requirements of the zoning district.
(b)
Land Use Minimums
1.
The principal indoor nonresidential use of any mixed-use building located at a corner of two (2) or more streets shall consist of a minimum of thirty-three (33) percent of that principal structure's total ground level gross floor area. (See Section 10.03.10 for Commercial and Section 10.03.12 for Institutional.) The required nonresidential use floor area shall be calculated based on the total ground floor area of the principal structure. If the ground floor area is ten thousand (10,000) square feet or greater, the minimum requirement for nonresidential use space shall be three thousand three hundred (3,300) square feet.
a.
Up to twenty-five (25) percent of any lobby or entryway spaces intended for use by both residential and nonresidential land uses shall count toward the minimum amount of ground floor nonresidential use floor area required in the calculation above.
(c)
Minimum and maximum required parking: See Section 10.06.06.
(d)
Mixed-Use Buildings shall comply with the design standards for commercial and mixed-use land uses. See Section 10.07.30. See Section 10.06.41 for on-site recreation space requirements.
(Ord. No. O1657, §§ 88, 89, 6-17-2025)
(1)
Adult-Oriented Entertainment Business
Adult-oriented entertainment businesses include an adult bath house, adult body painting studio, adult bookstore, adult cabaret, adult entertainment, adult mini-motion picture theater, adult modeling studio, adult motel, adult motion picture theater, adult motion picture theater (outdoor), adult novelty shop, and adult oriented entertainment as defined in Section 7.13 of the City of Middleton Municipal Code. A business defined as an adult-oriented entertainment business shall be located in accordance with the provisions in Section 7.13(1)(h).
(2)
Artisan Production Shop
A building or portion thereof used by ten (10) or fewer artists or artisans for the creation, preparation, display and sale of unique (rather than mass-produced) individually crafted items including artwork, jewelry, custom furniture, woodwork, sculpture, glass, metal, pottery, leathercraft, hand-woven articles, and related items, as either a principal use or accessory use.
Regulations
(a)
Minimum and maximum required parking: See Section 10.06.06.
(3)
Bed and Breakfast
Bed and Breakfasts are places of lodging that provide rooms for rent in the owner's personal residence, are occupied by the owner at the time of rental, and where the only meal served to guests is breakfast.
Regulations
(a)
Facility shall be surrounded by a bufferyard with a minimum opacity of 0.40 along all property borders abutting residentially zoned property.
(b)
The dwelling unit in which the Bed and Breakfast takes place shall be the principal residence of the operator/owner and said operator/owner shall live on the premises when the Bed and Breakfast operation is active.
(c)
The facility shall comply with the requirements of Wis. Stat. § 254.61 and Wis. Admin. Code Chap. DHS 197.
(d)
Minimum and maximum required parking: See Section 10.06.06.
(4)
Campground
Campgrounds include any facilities designed for overnight accommodation of persons in tents, travel trailers, or other mobile or portable shelters or recreational vehicles, including recreational vehicle overnight stays in parking lots and other similar locations not in campgrounds.
Regulations
(a)
Campgrounds shall be surrounded by a bufferyard with a minimum opacity of 0.60 along all property borders abutting residentially zoned property.
(b)
Shall comply with the requirements of the Health Code of Dane County and applicable state regulations.
(c)
Minimum and maximum required parking: See Section 10.06.06.
(5)
Commercial Animal Boarding
Facilities where short-term and/or long-term animal boarding is provided, including commercial kennels, commercial stables, and animal shelters. Exercise yards, fields, training areas, and trails associated with such land uses are considered accessory and do not require separate consideration.
Regulations
(a)
Outdoor animal containment areas shall be surrounded by a bufferyard with a minimum opacity of 0.80 along sides abutting residentially zoned property.
(b)
Each animal shall be provided with an indoor containment area.
(c)
Events such as shows, exhibitions, and contests shall only be permitted when a temporary use permit has been secured.
(d)
Minimum and maximum required parking: See Section 10.06.06.
(6)
Commercial Animal Daycare
Facilities where short-term pet daycare is provided. Exercise yards, fields, training areas, and trails associated with such land uses are considered accessory and do not require separate consideration.
(a)
Outdoor animal containment areas shall be surrounded by a bufferyard with a minimum opacity of 0.80 along sides abutting residentially zoned property.
(b)
Each animal shall be provided with an indoor containment area.
(c)
Events such as shows, exhibitions, and contests shall only be permitted when a temporary use permit has been secured.
(d)
Minimum and maximum required parking: See Section 10.06.06.
(7)
Commercial Indoor Lodging
Facilities where overnight housing in individual rooms or suites of rooms is provided, with each room or suite having a private bathroom. Such land uses may provide in-room or in-suite kitchens and may also provide indoor recreational facilities. Restaurant, lounge, fitness centers, and other on-site facilities available to non-lodgers are considered principal uses and therefore require review as a separate land use.
Regulations
(a)
Customer entrances shall be located fifty (50) feet from residentially zoned property.
(b)
Facility shall be surrounded by a bufferyard with a minimum opacity of 0.60 along all property borders abutting residentially zoned property.
(c)
Minimum and maximum required parking: See Section 10.06.06.
(8)
Commercial Kitchen
A building or portion thereof used for the preparation of food that can be rented or used as a classroom by different organizations, businesses, or individuals. Products produced on site may be sold off site.
Regulations
(a)
Shall comply with the requirements of the Health Code of Dane County and applicable state regulations.
(b)
Minimum and maximum required parking: See Section 10.06.06.
(9)
Drive-Through and In-Vehicle Sales or Service
Land uses where sales and/or services are conducted to persons in vehicles, or to vehicles which may or may not be occupied at the time of such activity (except vehicle repair and maintenance services). Such land uses often have traffic volumes which exhibit their highest levels concurrent with peak traffic flows on adjacent roads. Examples of such land uses include, but are not limited to, drive-in facilities, drive-through facilities, fuel stations, and car washes.
Regulations
(a)
Clearly marked pedestrian crosswalks shall be provided for each walk-in customer access to the facility.
(b)
Drive-through windows shall not be located between the principal building and the street right-of-way.
(c)
The drive-through facility shall be designed so as to not impede or impair vehicular and pedestrian traffic movement, or exacerbate the potential for pedestrian/vehicular conflicts.
(d)
In no instance shall a drive-through facility be permitted to operate which endangers the public safety, even if such land use has been permitted under the provisions of this Section.
(e)
The setback of the outer edge of any overhead canopy or similar structure shall be a minimum of ten (10) feet from all street rights-of-way lines, or the principal building setback, whichever is greater; a minimum of twenty (20) feet from all residentially zoned property lines; and shall be a minimum of five (5) feet from all other property lines. The total height of any overhead canopy or similar structure shall not exceed sixteen (16) feet per the measurement of roof height.
(f)
Any fuel pumps or pump islands shall be a minimum of seventy-five (75) feet from any street or abutting lot line.
(g)
Facility shall provide a bufferyard with a minimum opacity of 0.60 along all property borders abutting residentially zoned property.
(h)
Interior curbs shall be used to separate driving areas from exterior fixtures such as fuel pumps, vacuums, menu boards, canopy supports, and landscaped islands not part of an approved stormwater management system. Said curbs shall be six (6) inches high.
(i)
Minimum stacking lane length for drive-through facilities shall be as follows:
1.
Automatic automobile wash: One hundred (100) feet in front of the car wash entrance and twenty-five (25) feet after the exit.
2.
Establishments selling food and/or drink: One hundred (100) feet in front of each order station, fifty-five (55) feet between the order station and the pick-up window, and twenty-five (25) feet after the pick-up window.
3.
All other uses: Fifty-five (55) feet in front of and twenty-five (25) feet after each service window.
(j)
Minimum Required Parking
Refer to the parking requirements of the other land use activities on the site, such as, but not limited to, Indoor Sales and Service land uses for a gas station/convenience store, or Office land uses for a bank.
(10)
Food and Beverage Counter Service and Walk-In Pickup
Land uses which serve food and/or beverages at a counter to customers who typically consume the products off-site. A maximum of twelve (12) seats may be provided to customers waiting for a food pickup plus customers consuming the products on-site. Examples of such land uses include ice cream parlors, bakeries, coffee shops, and primarily carry-out oriented restaurants.
Regulations
(a)
Shall comply with the requirements of the Health Code of Dane County and applicable state regulations.
(b)
All uses selling alcohol shall comply with Chapter 7 of the City of Middleton Municipal Code.
(c)
Customer entrances shall be located a minimum of fifty (50) feet from residentially zoned property.
(d)
Minimum and maximum required parking: See Section 10.06.06.
(11)
Group Daycare Center (nine (9) + Children)
Facilities which provide childcare services for nine (9) or more children. Such land uses may be operated in conjunction with another principal land use on the same environs, such as a place of worship, school, business, or civic organization. In such instances, group daycare centers are considered a separate principal use and require review as such. See Wis. Admin. Code DCF § 251.
Regulations
(a)
Group Daycare Centers shall not be located within a residential building.
(b)
Facility shall be surrounded by a bufferyard with a minimum opacity of 0.50 along all property borders abutting residentially zoned property.
(c)
Minimum and maximum required parking: See Section 10.06.06.
(12)
Indoor Maintenance Service (Nonresidential)
Facilities where maintenance and repair service is provided and all operations are located entirely within an enclosed building, including the repair of clocks, vacuum cleaners, and small appliances. This shall not include Vehicle Sales or Vehicle Service and Repair land uses.
Regulations
(a)
Minimum and maximum required parking: See Section 10.06.06.
(13)
Indoor Sales or Service
The sale and/or display of merchandise or equipment or non-personal or non-professional services, entirely within an enclosed building. Examples of such uses include, but are not limited to, general merchandise stores, grocery stores, butcher, sporting goods stores, antique stores, gift shops, laundromats, bakeries, copy and printing centers, and photo processing centers.
Regulations
(a)
Minimum and maximum required parking: See Section 10.06.06.
(14)
Indoor Shooting Ranges
Land use which provides an indoor shooting range service entirely within an enclosed building. Such activities often have the potential to be associated with nuisances related to amplified noise and lighting, safety and security, and late operating hours that extend significantly later than most other commercial land uses.
Regulations
(a)
The building and method of operation shall conform to all applicable State and Federal standards for environmental protection and occupational health and safety. The applicant shall identify all such standards and demonstrate how the building and operation will comply including identification of any related state or federal reporting, inspection and permitting requirements.
(b)
The design and construction of the shooting range shall completely confine all ammunition rounds within the building in a safe, controlled manner.
1.
Compliance shall be demonstrated by plans, certified by an architect or engineer licensed or certified by the State of Wisconsin with demonstrated experience in indoor shooting range design.
2.
Compliance with the standards and recommendations of the most current versions of the Range Design Criteria of the U.S. Department of Energy, Office of Health, Safety and Security or the National Rifle Association Range Source Book shall be prima facie evidence of satisfaction of this condition. Under no circumstance shall the applicant be relieved of the obligation to comply with any requirement otherwise imposed by state, federal or local law.
3.
The plans shall specify the type and caliber of ammunition the shooting range is designed to confine. No ammunition shall be used, stored, sold, or possessed within the indoor shooting range that exceeds the certified design and construction specification for the shooting range.
(c)
The applicant shall demonstrate that the operation shall not be a nuisance to neighboring property or other likely neighboring property uses including nuisances related to air quality and noise.
(d)
A security plan shall be established for the building securing the building from unauthorized entrants as well as security for any firearms stored on the premises. No firearms shall be stored on the premises unless they are stored in a gun safe or other locked storage facility or container.
(e)
The shooting range shall establish clear rules and procedures for the health, safety and order of the operation, its employees and patrons consistent with accepted industry practices which shall be conspicuously posted at the shooting range.
(f)
On-site supervision of the range shall be provided at all times by an adult who is an experienced shooting range operator. The shooting range operator shall be responsible for taking all reasonable actions to assure the conduct of employees and patrons and the conditions of health, safety and order of the shooting range comply with all related rules and procedures.
(g)
No person under the age of eighteen (18) shall be permitted within the shooting range unless accompanied by an adult at all times. This condition shall not apply to prohibit minors from participating in firearms safety classes supervised by a qualified adult instructor.
(h)
Unless preempted by state or federal law, the Plan Commission may establish additional conditions or requirements including reporting or inspection requirements if it determines such conditions or requirements are reasonably necessary to protect the public health safety and welfare. Consideration shall be given to the cost and burden of such additional requirements upon the operation and upon City resources compared to the additional public benefit to be achieved, industry practices and evidence of experiences with similar operations in other communities.
(i)
Minimum and maximum required parking: See Section 10.06.06.
(15)
Intensive Outdoor Activity
Land uses located on private or public property that require intensive lighting and generate regional traffic and noise beyond property lines. Intensive outdoor activity land uses may include, but are not limited to, amusement parks, water parks, fairgrounds, outdoor stadiums, go cart tracks, paint ball, racetracks, ski hills, drive-in theaters, and tournament-oriented athletic facilities.
Regulations
(a)
No Intensive Outdoor Activity shall take place before 7:00 am or after 10:00 pm except as explicitly authorized by the conditional use process.
(b)
A bufferyard with a minimum opacity of 1.0 shall be provided along all property abutting residentially zoned property and for any facility requiring night lighting.
(c)
Facilities serving a regional or community-wide function shall provide an off-street passenger loading area if the majority of the users will be children or seniors.
(d)
Any activity area other than parking shall be set back a minimum of one hundred (100) feet from the property line.
(e)
Minimum and maximum required parking: See Section 10.06.06. The Zoning Administrator may require a parking study to determine parking requirements.
(16)
Office
Indoor Offices where the primary function is the handling of information or administrative services. Office uses do not typically provide services directly to customers on a walk-in basis.
Regulations
(a)
Minimum and maximum required parking: See Section 10.06.06.
(17)
Outdoor Commercial Entertainment
Land uses which provide entertainment services partially or wholly outside of an enclosed building. Such activities often have the potential to be associated with nuisances related to noise, lighting, dust, trash, and late operating hours. Outdoor commercial entertainment land uses may include, but are not limited to outdoor eating and drinking areas, sand volleyball courts, outdoor assembly areas, and outdoor swimming pools associated with another principal land use. Note that high-attendance facilities oriented to non-resident users or attendees and intensively lit tournament oriented outdoor facilities are considered intensive outdoor activity land uses (see Section 10.03.10(16)). Also see active outdoor recreation (Section 10.03.12(1)).
Regulations
(a)
Customer entrances shall be located a minimum of fifty (50) feet from residentially zoned property.
(b)
Activity areas shall not be located closer than fifty (50) feet to a residentially zoned property.
(c)
Facility shall provide bufferyard with minimum opacity of 0.60 along all borders of the outdoor activity area abutting residentially zoned property.
(d)
Minimum and maximum required parking: See Section 10.06.06.
(18)
Outdoor Sales and Display
Land uses where the sale and display of merchandise or equipment is conducted outside of an enclosed building on more than a temporary basis. Examples include, but are not limited to, outdoor garden centers, outdoor recreation equipment sales, monument sales, flea markets, and manufactured and mobile housing sales. If the permanent Outdoor Sales and Display area is less than the equivalent of five (5) percent of the total gross square footage of the building and is secondary to an Indoor Sales or Service use, such use shall instead be considered Incidental Outdoor Sales and Display under Section 10.03.28(12). Outdoor Sales and Display on a temporary basis shall be regulated by Temporary Outdoor Sales under Section 10.03.30(7). Also see Vehicle Sales (Section 10.03.10(24).
Regulations
(a)
The outdoor display area shall be calculated as the area which would be enclosed by an imaginary line that would completely enclose all materials displayed outdoors in the smallest possible rectangle.
(b)
The facility shall be surrounded by a bufferyard with a minimum opacity of 0.60 along all borders of the display area abutting residentially zoned property.
(c)
The display of items shall not be permitted in required setback areas, landscape areas, or bufferyards, unless located in a parking lot.
(d)
Inoperable vehicles or equipment, or other items typically stored in a junkyard or salvage yard as defined under Section 10.03.22(4), shall not be displayed.
(e)
In no event shall the display of items reduce or inhibit the use or number of parking stalls provided on the property below the requirement established by Subsection (i), below. If the number of provided parking stalls on the property is already less than the requirement, such display area shall not further reduce the number of parking stalls already present.
(f)
Display areas shall be separated from any circulation area by a minimum of ten (10) feet. This separation shall be clearly delimited by a physical separation such as a greenway, curb, fence, or line of planters, or by a clearly marked paved area.
(g)
Signs, screening, enclosures, landscaping, or materials being displayed shall not interfere in any manner with either on-site or off-site traffic visibility, including potential vehicle/vehicle and vehicle/pedestrian conflicts. Signs, screening, enclosures, landscaping, or materials being displayed shall comply with requirements related to corner clearance, vision triangles, crosswalks, drive aisle width, parking stall dimensions, fire lanes, bike lanes, or similar requirements related to traffic and pedestrian safety.
(h)
Outdoor Sales and Display shall be permitted during the entire calendar year, however, if goods are removed from the display area all support fixtures used to display the goods shall be removed within ten (10) calendar days of the goods' removal.
(i)
Minimum and maximum required parking: See Section 10.06.06.
(19)
Outdoor Maintenance Service (Nonresidential)
Facilities where maintenance and repair service is provided and where all or any portion of the operation is located outside of an enclosed building. This shall not include Vehicle Sales or Vehicle Service and Repair land uses.
Regulations
(a)
All areas put to active use shall be completely enclosed by a minimum six (6) feet high, solid fence. Such enclosure shall be located a minimum of fifty (50) feet from any residentially zoned property and shall be screened from such property by a bufferyard with a minimum opacity of 0.60.
(b)
Outdoor storage of unlicensed or inoperable vehicles is prohibited outside fenced areas.
(c)
Minimum and maximum required parking: See Section 10.06.06.
(20)
Personal or Professional Service
Indoor service land uses where the primary function is the provision of services directly to an individual on a walk-in or on-appointment basis. Examples of such uses include establishments where customers make an appointment, such as professional services, insurance or financial services, realty offices, small scale by-appointment medical offices and clinics, veterinary clinics, barber shops, beauty shops, and related land uses including ancillary on site production of items used in the provision of such services, as defined by the Incidental Light Industrial accessory use (see Section 10.03.28(11)).
Regulations
(a)
Minimum and maximum required parking: See Section 10.06.06.
(21)
Physical Activity Studio
All land uses which provide a facility for training, instruction, and physical activity within an enclosed building. Such activities may have operating hours which extend significantly earlier or later than most other commercial land uses, and may employ amplified sound to set training tempo (see Section 10.06.31 for Noise Standards). Examples of such land uses include health or fitness centers, all forms of training studios (yoga, dance, art, martial arts, gymnastics, etc.), and music schools.
Regulations
(a)
No customer entrance of any kind shall be permitted within fifty (50) feet of a residentially zoned property.
(b)
Facility shall provide bufferyard with minimum opacity of 0.60 along all borders of the property abutting residentially zoned property if outdoor physical activity takes place (see Section 10.08.30).
(c)
Minimum and maximum required parking: See Section 10.06.06.
(22)
Restaurants, Taverns, and Indoor Commercial Entertainment
Land uses which provide restaurants, taverns, or entertainment services entirely within an enclosed building. Such activities have the potential to be associated with nuisances related to amplified music, noise, lighting, trash, and late operating hours that extend significantly later than most other commercial land uses. Examples of such land uses include, but are not limited to, restaurants, brewpub, taverns, theaters, bowling alleys, arcades, roller rinks, and pool halls. Also see Section 10.03.10(18) for Outdoor Commercial Entertainment and Section 10.03.10(1) for Adult Entertainment.
Regulations
(a)
Shall comply with the requirements of the Health Code of Dane County and applicable state regulations.
(b)
All uses selling alcohol shall comply with Chapter 7 of the City of Middleton Municipal Code.
(c)
Customer entrances shall be located a minimum of fifty (50) feet from residentially zoned property.
(d)
Minimum and maximum required parking: See Section 10.06.06.
(e)
In the AIR district, this land use shall only be allowed within a terminal building.
(23)
Vehicle Sales
The sale and display of vehicles for sale or rent outside of an enclosed building. Such land uses shall also include an ancillary repair shop associated with the vehicle display lot and sales building.
Regulations
(a)
The display of vehicles shall not be permitted in green space areas, landscaped areas, or required bufferyards.
(b)
Facility shall be surrounded by a bufferyard with a minimum opacity of 0.60 along all borders of the display area abutting residentially zoned property.
(c)
Signs, screening, enclosures, landscaping, or materials being displayed shall not interfere in any manner with either on-site or off-site traffic visibility, including potential vehicle/vehicle and vehicle/pedestrian conflicts.
(d)
Inoperable vehicles or equipment or other items typically stored or displayed in a junkyard or salvage yard shall not be permitted.
(e)
Minimum and maximum required parking: See Section 10.06.06.
(24)
Vehicle Service and Repair
Facilities where vehicle service and/or repair is provided entirely within an enclosed building, including unlicensed or inoperable vehicles used for spare parts.
Regulations
(a)
Facility shall be surrounded by a bufferyard with a minimum opacity of 0.60 along all borders of the display area abutting residentially zoned property.
(b)
Signs, screening, enclosures, landscaping, or materials being displayed shall not interfere in any manner with either on-site or off-site traffic visibility, including potential vehicle/vehicle and vehicle/pedestrian conflicts.
(c)
Outdoor storage of unlicensed or inoperable vehicles is prohibited outside areas fully screened by a solid fence. Outdoor storage of other items typically stored or displayed in a junkyard or salvage yard shall not be permitted.
(d)
Minimum and maximum required parking: See Section 10.06.06.
(25)
Water-Related Recreation
Lake-related recreational facilities such as marinas, yacht clubs, bait shops, boat launching ramps, boat slips, boat storage, docking facilities, boat liveries and rentals, and boat repair and maintenance facilities, including gasoline pumps for marine use.
Regulations
(a)
Minimum required parking
Generally, one (1) space is required per every four (4) patrons at maximum capacity; however, the following specific requirements apply:
1.
Bait shops, marine supplies, and boat repair and maintenance facilities: One (1) space per three hundred (300) square feet of gross floor area plus one (1) space per employee on the largest work shift.
2.
Boat repair and maintenance facilities: One (1) space per four hundred (400) square feet of gross floor area.
3.
Marinas, yacht clubs, boat slips, boat docking facilities, and boat liveries and rentals: One (1) space per watercraft kept on site.
4.
Excursion and fishing cruises: One (1) space per every four (4) patrons at maximum capacity plus one (1) space per employee on the largest work shift.
5.
Boat launching ramps: Per Wisconsin Department of Natural Resources regulations.
(Ord. No. O1657, §§ 90—93, 6-17-2025)
(1)
Active Outdoor Recreation
Recreational land uses which involve active recreational activities. Such land uses include tennis courts, basketball courts, ball diamonds, football fields, soccer fields, neighborhood parks, tot lots, outdoor swimming pools, swimming beach areas, fitness courses, golf courses, and similar land uses.
Regulations
(a)
Each location shall have appropriate hours of use and comply with the noise provisions of Article VI Performance Standards.
(b)
Facilities using recreational facility night lighting and adjoining a residentially zoned property shall install and continually maintain a bufferyard with a minimum opacity of 0.60. Said bufferyard shall be located at the property line adjacent to said residentially zoned property.
(c)
All structures, paved areas, and active recreational improvements such as sandboxes, tot lots, tennis courts, and baseball backstops shall be located a minimum of twenty-five (25) feet from any residentially zoned property.
(d)
Facilities which serve a regional or community-wide function shall provide an off-street passenger loading area if the majority of the users will be children or seniors.
(e)
Minimum and maximum required parking: See Section 10.06.06.
(f)
An Active Outdoor Recreation Land Use that includes the following is required to obtain a Conditional Use Permit (10.10.32):
1.
Any on-site exterior lighting that exceeds 10.0 foot-candles.
2.
Any on-site parking that exceeds fifty (50) spaces.
(2)
Community Living Arrangement (1-8 Residents)
Facilities provided for in Wis. Stat. § 62.23(7)(i), including community living arrangements for adults as defined in Wis. Stat. § 46.03(22), community living arrangements for children as defined in Wis. Stat. § 48.743(1), foster homes as defined in Wis. Stat. § 48.02(6), and adult family homes and community-based residential facilities (CBRFs) as defined in Wis. Stat. § 50.01(1g).
Community Living Arrangements do not include Boarding Houses, Group Daycare Centers, nursing homes, homeless shelters, hospitals, prisons, or jails. Community Living Arrangement facilities are regulated depending upon their capacity as provided for in Wis. Stat. § 62.23(7)(i)1.-5., provided any such regulations do not violate federal or state housing or anti-discrimination laws.
Regulations
(a)
No Community Living Arrangement shall be established within two thousand five hundred (2,500) feet of any other such facility regardless of its capacity.
(b)
The total capacity of all Community Living Arrangements (of all capacities) in the City shall not exceed one (1) percent of the City's population. The Zoning Administrator shall make this determination.
(c)
Foster homes housing four (4) or fewer children and licensed under Wis. Stat. § 48.62 shall not be subject to Subsection (a), above; and shall not be subject to, or count toward, the total arrived at in Subsection (b), above.
(d)
Each facility shall have a rear and side yard which is visually screened from adjacent residential properties using a bufferyard with a minimum opacity of 0.20.
(e)
Minimum and maximum required parking: See Section 10.06.06.
(f)
Driveways shall be considered legal "stacked" parking spaces, provided that each parking space is no less than eight (8) feet in width and eighteen (18) feet in depth. A driveway may contain one (1) or more legal parking spaces.
(g)
Any application is required to disclose in writing the capacity of the community living arrangement proposed.
(3)
Community Living Arrangement (nine (9) to fifteen (15) Residents)
See description under Subsection (2), above.
Regulations
(a)
See Regulations under Section (10.03.12(2)), above.
(4)
Community Living Arrangement (sixteen (16) + Residents)
See description under Subsection (2), above.
Regulations
(a)
See Regulations under Section (10.03.12(2)), above.
(5)
Indoor Institutional
Indoor public and not for profit recreational facilities (such as gyms, swimming pools, libraries, museums, and community centers), government facilities, schools, places of worship, homeless day shelters, hospitals and walk-in clinics, nonprofit clubs, nonprofit fraternal organizations, convention centers, private institutional businesses, jails, prisons, and similar land uses.
Regulations
(a)
An off-street passenger loading area shall be provided if the majority of the users will be children or seniors (as in the case of a school, place of worship, library, or similar land use).
(b)
Minimum and maximum required parking: See Section 10.06.06.
(6)
Institutional Residential
Residential development designed to accommodate Institutional Residential land uses, such as convents, monasteries, dormitories, fraternities, sororities, senior housing, retirement homes, assisted living facilities, nursing homes, hospices, convalescent homes, limited care facilities, rehabilitation centers, homeless shelters (with or without meal service), and similar land uses not considered to be Community Living Arrangements under Sections 10.03.12(2-4) of this Ordinance or under the provisions of Wis. Stat. § 62.23.
Regulations
(a)
Project shall provide an off-street passenger loading area at a minimum of one (1) location within the development.
(b)
Minimum required parking: The following specific parking requirements may apply.
1.
Public or private dormitory: One (1) space per four (4) residents plus one (1) space per nonresident employee on the largest work shift.
2.
Monastery or convent: One (1) space per four (4) beds plus one (1) space per employee on the largest work shift.
3.
Senior housing or retirement housing: One (1) space per dwelling unit.
4.
Assisted living facility or limited care facility: Determined by the Zoning Administrator.
5.
Nursing home or hospice: Determined by the Zoning Administrator.
(7)
Large Scale Public Services and Utilities
Large scale facilities such as public works facilities and garages, wastewater treatment plants, potable water treatment plants, public and/or private utility substations, water towers, well houses, and similar land uses involving buildings and/or fenced enclosures. This does not include uses listed under Small Scale Public Services and Utilities.
Regulations
(a)
All structures and outdoor storage areas shall be located a minimum of twenty (20) feet from any residentially zoned property.
1.
The siting of any new sewage treatment facility is subject to the required separation distances per NR 110.15(3)(d), unless a waiver is obtained through the Wisconsin Department of Natural Resources.
(b)
All outdoor storage areas adjoining a residentially zoned property shall install and continually maintain a bufferyard with a minimum opacity of 0.60. Said bufferyard shall be located at the property line adjacent to said residentially zoned property.
(c)
The exterior of all buildings shall meet the requirements for exterior materials of Article VII.
(d)
Minimum and maximum required parking: See Section 10.06.06.
(8)
Outdoor Open Space Institutional
Cemeteries, privately held permanently protected green space areas, open grassed areas not associated with any particular active recreational land use, and similar land uses.
Regulations
(a)
Minimum and maximum required parking: See Section 10.06.06.
(9)
Passive Outdoor Recreation
Recreational land uses which involve passive recreational activities, such as arboretums, natural areas, wildlife areas, hiking trails, bike trails, cross country ski trails, horse trails, picnic areas, picnic shelters, botanical gardens, fishing areas, and similar land uses.
Regulations
(a)
Minimum and maximum required parking: See Section 10.06.06.
(10)
Small Scale Public Services and Utilities
The erection, construction, alteration, or maintenance by public utilities or municipal or other governmental agencies and private utilities, of underground and overhead lines and pipes for gas, electric, telephone, communications, cable television, steam, public water supply, sanitary sewage collection, stormwater detention or conveyance, or other comparable utilities. Small Scale Public Services and Utilities include such above-surface facilities as poles, guy wires, fire alarm boxes, water hydrants, lift stations, utility posts, police call boxes, cabinets, vaults, and standpipes. This land use category does not include larger utility facilities included under Large Scale Public Services and Utilities, such as electric substations, wastewater treatment plants, well houses, and water towers.
Regulations
(a)
Small Scale Public Services and Utilities are exempt from density, intensity, and bulk regulations.
(b)
All structures and outdoor storage areas shall be located a minimum of twenty (20) feet from any residentially zoned property. Does not include landscaping or storm water detention facilities.
(c)
The exterior of all buildings shall meet the requirements for exterior materials of Article VII.
(d)
Minimum and maximum required parking: See Section 10.06.06.
(1)
Heavy Industrial
Industrial activities that may be wholly or partially located outside of an enclosed building; may have the potential to create certain nuisances which are detectable at the property line; and may involve materials which pose a significant safety hazard. Examples include, but are not limited to: fruit, vegetable, grain, dairy, and meat product producer and by-product producers; slaughterhouses; tanneries; paper, pulp or paperboard producers; chemical and allied product producers (except drug producers) including poison or fertilizer producers; plastic refinement and raw plastics material production; petroleum and coal product producers; asphalt, concrete or cement producers; stone, clay, or glass product producers; primary metal producers; heavy machinery producers; electrical distribution equipment producers; electrical industrial apparatus producers; transportation vehicle producers; commercial sanitary sewage treatment plants; railroad switching yards; recycling facilities not involving the on-site storage of salvage materials; and large-scale alcoholic beverage producers exceeding the production limits in Wis. Stat. § Chapter 125.
Regulations
(a)
Facility shall be surrounded by a bufferyard with a minimum opacity of 1.0 along all borders of the property abutting properties which are not zoned I-H.
(b)
All outdoor activity areas shall be located a minimum of one hundred (100) feet from residentially zoned property.
(c)
In no event shall the storage of items reduce or inhibit the use or number of parking stalls provided on the property below the requirement established by the provisions of Subsection (d), below. If the number of provided parking stalls on the property is already less than the requirement, such storage area shall not further reduce the number of parking stalls already present.
(d)
Minimum and maximum required parking: See Section 10.06.06.
(2)
Indoor Food Production and Processing
Any business whose principal activity is the growing, production, or wholesaling of products that are either grown or stored on-site or shipped to the site for indoor production purposes. This land use also includes the following activities: the seasonal display of plants and related products outdoors; the farming of aquatic plants and animals under controlled conditions utilizing recirculating (closed) system technology; and aquaponics, which is the symbiotic cultivation of plants and aquatic organisms in a recirculating system. This land use does not include Heavy Industrial uses (Section 10.03.14(1)) such as slaughterhouses or other related production uses that may have the potential to create certain nuisances which are detectable at the property line or may involve materials which pose a significant safety hazard.
Regulations
(a)
Outdoor activity regulations.
1.
No areas put to active use outdoor activity areas shall be located in bufferyard areas. No materials shall be stacked or otherwise stored so as to be visible over bufferyard screening elements. All on-site outdoor activity, excluding Outdoor Sales and Display, areas shall be completely enclosed by any permitted combination of buildings, structures, walls, and/or fencing. Such walls and fencing shall be a minimum of 8 feet in height and shall be designed to completely screen all stored materials or products from view of non-industrialized areas at an elevation of 5 feet above the grade of all adjacent properties and rights-of-way. Said walls or fencing shall be screened from residentially zoned property by a bufferyard with a minimum opacity of 0.80.
2.
All Outdoor Storage areas shall be located no closer to a residentially-zoned property than the required minimum setback for buildings on the subject property and shall not be permitted in any landscaping areas, bufferyard areas, or permanently protected green space areas.
3.
In no event shall the storage of items reduce or inhibit the use or number of parking stalls provided on the property below the requirement established by the provisions of (e), below. If the number of provided parking stalls on the property is already less than the requirement, such storage area shall not further reduce the number of parking stalls already present.
4.
Outdoor Storage and/or Outdoor Sales and Display areas shall be separated from any vehicular parking or circulation area by a minimum of 10 feet. This separation shall be clearly distinguished by a physical feature or barrier such as a greenway, curb, fence, or line of planters, or by a clearly marked paved area.
5.
Outdoor storage areas equivalent to 5 percent of the gross building floor area or up to 500 square feet, whichever is less shall comply with the requirements of Incidental Outdoor Storage under Section 10.03.28(14). Any outdoor storage areas exceeding those metrics stated above shall comply with the requirements of Outdoor Storage and Wholesaling as a principal use under Section 10.03.16(2).
6.
Outdoor display areas equivalent to 5% of the total gross square footage of the building or less shall comply with the requirements of Incidental Outdoor Sales and Display under Section 10.03.28(12). Outdoor display areas exceeding those metrics stated above shall comply with the requirements of Outdoor Sales and Display as a principal use under Section 10.03.10(19).
7.
The on-site retail sale of goods shall be considered Incidental Indoor Sales subject to the provisions of Section 10.03.28(10), provided the area devoted to sales does not exceed 25 percent of the total area of the building(s) within which the operation is located. Retail areas that exceed those metrics stated above shall be considered an Indoor Sales or Service principal land use under Section 10.03.10(14).
(b)
On-site processing of seafood is permitted; provided the activity is conducted entirely within an enclosed building and no odors are detectable from the property line. All farming of aquatic plans and animals shall take place entirely within an enclosed building.
1.
Prior to any approvals for the operation, applicants wishing to establish indoor aquaculture operations shall prepare a report outlining the estimated average daily water usage and quantity of wastewater discharge. Such report shall be reviewed and approved by the City of Middleton Public Works Department.
2.
Indoor aquaculture operations shall be connected to the municipal water and sanitary sewer system and all wastewater shall be discharged to the municipal sanitary sewer system.
(c)
On-site composting shall be permitted, subject to the following regulations:
1.
Compost areas shall be fully screened on all four (4) sides by a combination of on-site buildings, solid fencing, and evergreen landscaping.
2.
Composting shall comply with all county, state, and federal rules, regulations, and permitting requirements.
(d)
Minimum and maximum required parking: See Section 10.06.06.
(3)
Light Industrial
Facilities where all operations, with the exception of loading, are conducted entirely within an enclosed building. Such land uses are not associated with nuisances such as odor, noise, heat, vibration, and radiation which are detectable at the property line, and do not pose a significant safety hazard (such as danger of explosion). Examples include, but are not limited to manufacturing and or assembly of clothing, furniture, cabinetry, electronic components, food or related products, motorized equipment assembly, production of plastic products and components from plastics pellets and related material refined or produced off-site, mass-produced arts and crafts, and contractors shops for electrical, plumbing, HVAC, painting, plasters, and other similar trades. Industrial land uses may conduct indoor sales as an accessory use provided that the requirements of Section 10.03.28(10) are complied with.
Regulations
(a)
All activities, except loading and unloading, shall be conducted entirely within the confines of a building.
(b)
Minimum and maximum required parking: See Section 10.06.06.
(4)
Production Greenhouse
Any business in which the principal activity is the growing and wholesaling of plants or plant byproducts such as flowers, shrubbery, trees, and horticultural and floricultural products (not including fruits and vegetables) that are grown or stored within an enclosed building or structure constructed chiefly of glass or glasslike material, cloth, or other permanent material. Such uses also often involve the seasonal display of plants and related products outdoors.
Regulations
(a)
In no event shall the display of items reduce or inhibit the use or number of parking stalls provided on the property below the requirement established by the provisions of Subsection (f), below. If the number of provided parking stalls on the property is already less than the requirement, such display area shall not further reduce the number of parking stalls already present.
(b)
Outdoor display areas equivalent to five (5) percent of the total gross square footage of the building or less shall comply with the requirements of Incidental Outdoor Sales and Display under Section 10.03.28(12). Outdoor display greater than the equivalent to five (5) percent of the total gross square footage of the building shall comply with the requirements of Outdoor Sales and Display as a principal use under Section 10.03.10(19).
(c)
Outdoor Storage and/or Outdoor Sales and Display areas shall be separated from any vehicular parking or circulation area by a minimum of ten (10) feet. This separation shall be clearly distinguished by a physical feature or barrier such as a greenway, curb, fence, or line of planters, or by a clearly marked paved area.
(d)
Signs, screening, enclosures, landscaping, or materials being displayed shall not interfere in any manner with either on-site or off-site traffic visibility, including potential traffic/traffic and traffic/pedestrian conflicts.
(e)
The facility shall be surrounded by a bufferyard with a minimum opacity of 0.60 along all borders of Outdoor Sales and Display areas abutting residentially zoned property.
(f)
Minimum and maximum required parking: See Section 10.06.06.
(Ord. No. O1657, § 94—97, 6-17-2025)
(1)
Indoor Storage and Wholesaling
Land uses primarily oriented to the receiving, holding, and shipping of packaged materials for a single business or a single group of businesses. With the exception of loading and parking facilities, such land uses are contained entirely within an enclosed building. Examples of this land use include conventional warehouse facilities, long-term indoor storage facilities, and joint warehouse and storage facilities. Retail associated with this use shall be considered accessory uses per Section 10.03.28(10).
Regulations
(a)
All new construction of any indoor storage and wholesaling land use shall meet the requirements of Industrial Land Use Design Standards (see Section 10.07.40).
(b)
Minimum and maximum required parking: See Section 10.06.06.
(2)
Outdoor Storage and Wholesaling
Land uses primarily oriented to the receiving, holding, and shipping of packaged materials for a single business or a single group of businesses. Such a land use, in which any activity beyond loading and parking is located outdoors, is considered an Outdoor Storage and Wholesaling land use. Examples of this land use include, but are not limited to, storage yards, equipment yards, lumber yards, and coal yards.
Regulations
(a)
All outdoor storage areas shall be completely enclosed by any permitted combination of buildings, structures, walls, and solid fencing. Such walls and fencing shall be a minimum of eight (8) feet in height and shall be designed to completely screen all stored materials from view from non-industrialized areas. Said walls or fencing shall be screened from residentially zoned property by a bufferyard with a minimum opacity of 0.80.
(b)
Outdoor storage areas accessory to a principal land use and occupying up to five (5) percent of the gross building square footage or up to five hundred (500) square feet, whichever is less shall be regulated as Incidental Outdoor Storage under Section 10.03.28(14).
(c)
The storage of items shall not be permitted in landscaping areas, bufferyard areas, or green space areas.
(d)
In no event shall the storage of items reduce or inhibit the use or number of parking stalls provided on the property below the requirement established by the provisions of Subsection (h). If the number of provided parking stalls on the property is already less than the requirement, such storage area shall not further reduce the number of parking stalls already present.
(e)
Materials being stored shall not interfere in any manner with either on-site or off-site traffic visibility, including potential vehicle/vehicle and vehicle/pedestrian conflicts.
(f)
Inoperable vehicles or equipment, or other items typically stored in a junkyard or salvage yard, shall not be stored under the provisions of this land use.
(g)
All new construction of any outdoor storage and wholesaling land use shall meet the requirements of Industrial Land Use Design Standards (see Section 10.07.40).
(h)
Minimum and maximum required parking: See Section 10.06.06.
(3)
Personal Storage Facility
Also known as "mini-warehouses," these land uses are oriented to the indoor storage of items entirely within partitioned buildings having an individual access to each partitioned storage area.
Regulations
(a)
Facility shall be surrounded by a bufferyard with a minimum opacity of 0.80 along all property borders abutting residentially zoned property.
(b)
All storage shall take place entirely within an enclosed building.
(c)
All new construction of any personal storage facility land use shall meet the requirements of Industrial Land Use Design Standards (see Section 10.07.40).
(d)
Minimum and maximum required parking: See Section 10.06.06.
(1)
Airport
An area used for the landing and take-off of aircraft, as defined in Wis. Stat. § 114.001(3), and any appurtenant areas which are used for airport buildings or other airport facilities or rights-of-way, together with all airport buildings and related air transportation facilities, per Wis. Stat. § 114.002(7).
Regulations
(a)
Airports shall conform to the regulations of Chapter 31 of the City of Middleton Municipal Code.
(b)
All new construction of any airport land use shall meet the requirements of Industrial Land Use Design Standards (see Section 10.07.40).
(c)
Minimum required parking: Minimum and maximum required parking: See Section 10.06.06.
(2)
Distribution Center
Facilities oriented to the short-term indoor storage and possible repackaging and reshipment of materials involving the activities and products of a single user. Retail associated with this use shall be considered accessory uses per Section 10.03.28(10).
Regulations
(a)
Facility shall be surrounded by a bufferyard with a minimum opacity of 1.00 along all property borders abutting residentially zoned property.
(b)
All buildings, structures, outdoor storage areas, and any other activity areas shall be located a minimum of one hundred (100) feet from all lot lines abutting residentially zoned property.
(c)
In no instance shall activity areas be located within landscaping areas, bufferyard areas, or green space areas.
(d)
All new construction of any distribution center land use shall meet the requirements of Industrial Land Use Design Standards (see Section 10.07.40).
(e)
Minimum and maximum required parking: See Section 10.06.06.
(3)
Freight Terminal
Land and buildings representing either end of one (1) or more truck carrier line(s) which may have some or all of the following facilities: yards, docks, management offices, storage sheds, buildings and/or outdoor storage areas, freight stations, and truck maintenance and repair facilities, principally serving several or many businesses requiring trans-shipment.
Regulations
(a)
Facility shall be surrounded by a bufferyard with a minimum opacity of 1.00 along all property borders abutting residentially zoned property.
(b)
All buildings, structures, outdoor storage areas, and any other activity areas shall be located a minimum of one hundred (100) feet from all lot lines abutting residentially zoned property.
(c)
In no instance shall activity areas be located within landscaping areas, bufferyard areas, or green space areas.
(d)
All new construction of any freight terminal land use shall meet the requirements of Industrial Land Use Design Standards (see Section 10.07.40).
(e)
Minimum and maximum required parking: See Section 10.06.06.
(4)
Heliport
An area designed to be used for the landing or takeoff of helicopters including operations facilities, such as maintenance, loading and unloading, storage, fueling, or terminal facilities.
Regulations
(a)
The Heliport shall be located at least two hundred (200) feet from any residentially used or zoned property, measured in a straight line from the closest point of the takeoff and landing area to the property line of the closest residentially used or zoned property. The application shall include an area map showing the distance between the proposed takeoff and landing area and the nearest residential property.
(b)
The Heliport shall be constructed, operated, and maintained in accordance with the rules and regulations of the Federal Aviation Administration (FAA) and State.
(c)
All new construction of any heliport land use shall meet the requirements of Industrial Land Use Design Standards (see Section 10.07.40).
(d)
Minimum and maximum required parking: See Section 10.06.06.
(5)
Off-Site Parking Lot
Off-Site Parking Lots include any areas used for the temporary surface parking of vehicles which are fully registered, licensed, and operable and which serve a principal land use located on a separate lot. See Section 10.06.06 for additional parking regulations.
Regulations
(a)
Access and vehicular circulation shall be designed so as to discourage cut-through traffic.
(b)
Parking lots shall comply with the landscaping requirements of Article VIII.
(6)
Off-Site Structured Parking
Commonly referred to as a parking ramp or parking garage, Off-Site Structured Parking is a type of parking structure for the temporary parking of vehicles which are fully registered, licensed, and operable. Off-Site Structured Parking is a stand-alone, multi-level parking area in which one (1) or more levels are supported above the lowest level. A parking structure may also include underground parking spaces. Parking structures that are incorporated into the same building as a separate principal land use shall be regulated as On-Site Structured Parking under Section 10.03.28(20) See Section 10.06.06 for additional parking regulations.
Regulations
(a)
Parking structures may contain other commercial uses on the ground floor level. Such uses shall be limited to those permitted by right or by conditional use permit in the applicable zoning district.
(b)
Parking structures must meet all applicable bulk requirements.
(c)
Clearly-marked pedestrian connections between the parking structure and adjacent uses shall be required.
(d)
Screening or other improvements that shield parked vehicles from view at each level of the parking structure shall be required.
(e)
Parking structures shall comply with the landscaping requirements of Article VIII.
(f)
Exterior elevations shall be designed to minimize the use of blank concrete façades and shall have an architectural treatment that is compatible with the surrounding architectural context. Materials shall minimize glare in compliance with Section 10.06.34. Exterior elevations are encouraged to be designed to replicate the regular window pattern and other architectural elements of adjacent buildings. See Article VII.
(7)
Transit Center
A building, structure, and/or area designed and used for the purpose of loading, unloading, or transferring passengers or accommodating the movement of passengers from one mode of transportation to another. Examples include, but are not limited to, bus stations, train stations, and park and ride stations.
Regulations
(a)
Facility shall be surrounded by a bufferyard with a minimum opacity of 1.0 along all property borders abutting residentially zoned property.
(b)
All buildings, structures, outdoor storage areas, and any other activity areas, except employee and passenger parking, shall be located a minimum of one hundred (100) feet from all lot lines abutting residentially zoned property.
(c)
All new construction of any transit center land use shall meet the requirements of Industrial Land Use Design Standards (see Section 10.07.40).
(d)
Minimum and maximum required parking: See Section 10.06.06.
(1)
Communication Tower
Any structure that is designed and constructed for the purpose of supporting one (1) or more antennas for communication purposes such as cellular telephones or similar, including self-supporting lattice towers, guyed towers, or monopole towers. For satellite dishes and antennas accessory to a principal use, see Section 10.03.28(21) and 10.03.28(25). Height shall be measured from finished grade to the highest point on the tower or other structure, including the base pad. This definition includes the mobile service support structure, supports, and equipment buildings.
Regulations
(a)
Applicability
This land use shall not be regulated or permitted as Small Scale Public Services and Utilities, or Large Scale Public Services and Utilities. This Section shall apply to the following:
1.
New Towers. All new towers in the City of Middleton shall be subject to these regulations.
2.
Preexisting Towers. Preexisting towers shall not be required to meet the requirements of this Section, other than the requirements of Subsection (b) of this Section.
3.
Towers shall be considered principal uses. A different use on the same lot shall not preclude the installation of a tower on such lot.
4.
See Section 10.03.28(3) for Communication Antennas, an accessory land use typically associated with Communication Towers.
(b)
Compliance with Federal Regulations
Towers shall be erected and installed in accordance with the state electrical code adopted by reference in § 101-31 et seq., National Electrical Code, Federal Communications Commission, Federal Aviation Administration, and the instructions of the manufacturer. In cases of conflict, the stricter requirements shall govern.
(c)
Submittal and review procedure requirements and other requirements specific to Communication Towers must be consistent with Wis. Stat. § 66.0404.
(d)
Permit Required
A permit is required for all new Communication Towers or modifications to existing Communication Towers. The permit application shall contain all of the following information:
1.
The name and business address of, and the contact individual for, the applicant.
2.
The location of the proposed or affected support structure.
3.
The location of the proposed mobile service facility.
4.
If the application is to substantially modify an existing support structure, a construction plan which describes the proposed modifications to the support structure and the equipment and network components, including antennas, transmitters, receivers, base stations, power supplies, cabling, and related equipment associated with the proposed modifications.
5.
If the application is to construct a new mobile service support structure, a construction plan which describes the proposed mobile service support structure and the equipment and network components, including antennas, transmitters, receivers, base stations, power supplies, cabling, and related equipment to be placed on or around the new mobile service support structure.
6.
If an application is to construct a new mobile service support structure, an explanation as to why the applicant chose the proposed location and why the applicant did not choose collocation, including a sworn statement from an individual who has responsibility over the placement of the mobile service support structure attesting that collocation within the applicant's search ring would not result in the same mobile service functionality, coverage, and capacity; is technically infeasible; or is economically burdensome to the mobile service provider.
a.
The application must also include a visual analysis, which may include an annotated photo montage, field mockup, or other technique prepared by or on behalf of the applicant which identifies the potential visual impacts, location, configuration, and the design capacity of the proposed facility to the satisfaction of the Plan Commission. Consideration shall be given to views from public areas as well as from private residences. The analysis shall assess the impacts of the proposed facility and other existing telecommunication facilities in the area, and shall identify and include all feasible mitigation measures consistent with the technological requirements of the proposed personal wireless services. All costs for the visual analysis, and applicable administrative costs, shall be borne by the applicant.
(e)
All service carriers and providers that offer or provide any telecommunications services for a fee directly to the public, either within the City or outside the corporate limits from telecommunications facilities within the City, and all communication tower owners, shall register and provide to the City, pursuant to this Ordinance, on forms to be provided by the Building Inspector and shall provide with each conditional use application the following information below. It shall be unlawful for any personal wireless services carrier or provider who offers or provides services within the City, or any communication tower owner who owns or operates telecommunications facilities within the City, to fail to register and provide the information required within thirty (30) days of such a request by the City.
1.
The identity and legal status of the registrant, including any affiliates.
2.
The name, address and telephone number of the officer, agent or employee responsible for the accuracy of the registration statement.
3.
A narrative and map description of registrant's existing telecommunications facilities within the City, adjacent cities, villages and townships.
4.
Such other information as the Building Inspector may reasonably require.
(f)
Placement Requirements
1.
Towers and guyed wires shall be set back from any property line a minimum distance equal to one hundred (100) percent of the height of the communication tower.
2.
The placement of towers on the roof of existing buildings must maintain a setback from residential zones or properties the same as the building setback required for new buildings.
3.
No communication tower shall be installed closer than 1/4 mile from another communication tower, measured from the base of the tower to the base of the proposed tower, unless it is a tower situated on a multi-tower zoning lot, or credible evidence to a reasonable degree of certainty acceptable to the Plan Commission is submitted showing a clear need for said new tower and the infeasibility of co-locating it on an existing site. For the purposes of this requirement, exempt telecommunications facilities unavailable for co-location shall not be included in the 1/4 mile computation.
(g)
Structural Requirements
Every telecommunication facility shall be designed and constructed so as to comply with the requirements of Wis. Admin. Code Chap. COMM 62.35 to 62.41, amended from time to time. If, upon inspection, the Building Inspector concludes that a tower fails to comply with such codes, in effect at the time of construction, and constitutes a danger to persons or property, then upon notice being provided to the owner of the tower, the owner shall have thirty (30) days or such time as determined by the Building Inspector to bring such tower into compliance with said codes. Failure to bring such tower into compliance within said thirty (30) days or such time as determined by the Building Inspector shall constitute grounds for the removal of the tower or antenna at owner's expense.
(h)
Basic Tower and Building Design
All new communication towers, except exempt facilities as defined in Subsection (i) below, shall be designed to blend into the surrounding environment to the greatest extent feasible. To this end all the following measures shall be implemented.
1.
Communication towers shall be constructed out of metal or other nonflammable material, unless specifically permitted by the City to be otherwise.
2.
Telecommunication support facilities see Subsection (i) Equipment Buildings below.
3.
The City shall have the authority to require reasonable special design (materials, architectural features and color) of the communication tower where findings of particular sensitivity are made (e.g. proximity to historic or aesthetically significant structures, views and/or community features).
4.
Communication towers shall ensure that sufficient anti-climbing measures have been incorporated into the facility, as needed, to reduce potential for trespass and injury.
5.
Accessory communication antenna shall be designed to blend with its supporting structure. The color selected shall be one that in the opinion of the Plan Commission will minimize the visibility of the antennas to the greatest extent feasible.
6.
All new communication towers shall be structurally and electrically designed to accommodate at least three (3) separate antenna arrays, unless credible evidence is presented that said construction is economically and technologically unfeasible or the Plan Commission determines that for reasons of aesthetics or to comply with the standards above, a communication tower of such height to accommodate three (3) antenna arrays is unwarranted. Multi-user communication towers shall be designed to allow for future rearrangement of antennas and to accept antennas mounted at varying heights. Parking areas, access roads, and utility easements shall be shared by site users, at fair market rates as determined by customary industry standards, when in the determination of the Plan Commission this will minimize overall visual impact to the community.
(i)
Equipment Buildings
Equipment buildings, including cabinets, used in connection with commercial communication antennas will be subject to the following conditions:
1.
Any location and impact of the equipment buildings shall be made as minimal as possible so as not to prevent the principal use of the property.
2.
Exterior storage of ground-mounted equipment or materials shall not be permitted.
3.
Equipment buildings or structures may be mounted on the roof of a building provided that such building or structure is placed as unobtrusively as possible (e.g. integrated into the roof design) and/or is screened from view from adjacent roads and properties.
4.
Any ground-mounted equipment building used for accessory equipment must either be screened from view from all adjacent residential and commercial uses and potentially incompatible municipal uses with a bufferyard with a minimum opacity of 0.40, or the equipment building must be constructed with similar materials, style, roof pitch, etc., to complement the architectural character of the surrounding neighborhood.
5.
All ground-mounted equipment buildings shall at a minimum meet the required setbacks of a principal structure for the underlying zoning district and shall meet all applicable building code requirements.
(j)
Height Requirements
1.
Tower height shall be restricted to one hundred (100) feet. Zoning District height restrictions shall not apply to commercial communication towers.
2.
Towers are subject to the Airport Height Limit Overlay Zoning Map. See Section 10.02.83.
(k)
Collocation
A proposed tower shall be structurally and electrically designed to accommodate the applicant's antenna and comparable antennas for two (2) additional users. Towers shall be designed to allow for future rearrangement of antennas and to accept antennas mounted at varying heights.
(l)
Advertising
No form of advertising or identification, or sign is allowed on the tower other than the customary manufacturer identification plate.
(m)
Lighting
Towers shall not be artificially illuminated unless required by the FAA or any other applicable authority.
(n)
Fencing
A tower shall be enclosed by solid fencing not less than six (6) feet in height or a bufferyard with a minimum opacity of 0.40 and secured so that it is not accessible by the general public. Fence design, materials and colors shall reflect the character of the surrounding area.
(o)
Color
The wireless communication tower and antennae shall be of a neutral color such as light gray or sky blue except as dictated by the Federal Aviation Administration (FAA) and be designed to minimize visibility and to blend into the surrounding environment. Towers with antennas shall be designed to withstand applicable wind load requirements as prescribed in the Uniform Building Code. Towers and/or antenna systems shall be constructed of, or treated with, corrosive resistant material. A regular maintenance schedule shall be followed.
(p)
Abandonment
1.
The applicant shall provide a written agreement stating that if the tower or transmitters are unused for a period exceeding three hundred sixty-five (365) days, the applicant shall remove the tower or transmitters upon request from the City.
2.
Within thirty (30) days of the date on which the tower use ceases, the permit holder shall provide the commission written notice of the cessation of use.
3.
If unused facilities are not removed, the City may remove the items at the expense of the owner of the property upon which the tower was placed.
(q)
Inventory and Tracking System
The Zoning Administrator shall compile a list of existing telecommunications facilities within the City's jurisdiction based upon information provided by personal wireless services providers and communication tower owners. The Zoning Administrator shall maintain and update said list on a regular basis. The list shall also include the location of public facilities that may be available for co-location.
(r)
Exempt Facilities
1.
Publicly owned and operated facilities required in the public interest to provide for and maintain a radio frequency telecommunication system, including digital, analog, wireless or electromagnetic waves, for police, fire and other municipal services.
(s)
Applications and Fees
1.
All co-location applications must be processed within the timeframes set forth by the Federal Communications Commission. Any application for the co-location of small wireless facilities must be processed by the City within sixty (60) days of receiving a completed application and any other co-location facility application must be processed within ninety (90) days of receiving a completed application.
2.
All fees associated with small wireless facilities must be a reasonable approximation of the objectively reasonable cost associated with maintaining infrastructure or processing an application in accordance with the maximum values set forth by the Federal Communications Commission.
(1)
Composting Facility
Land uses devoted to the collection, storage, processing, and/or disposal of vegetation or food waste.
Regulations
(a)
Composting facilities shall comply with all county, state, and federal regulations.
(b)
Facility shall provide a bufferyard with a minimum opacity of 1.00 along all borders of the property occupied by non-agricultural land uses.
(c)
All buildings, structures, outdoor storage, and any other activity areas shall be located a minimum of one hundred (100) feet from all lot lines.
(d)
Operations shall not involve the on-site holding, storage, or disposal of hazardous wastes as defined by State Statutes in any manner.
(e)
Minimum and maximum required parking: See Section 10.06.06.
(2)
Extraction
Land uses involving the removal of soil, clay, sand, gravel, rock, minerals, peat, or other material in excess of that required for approved on-site development or agricultural activities.
Regulations
(a)
The facility shall comply with all county, state, and federal regulations and provide copies of all approved county, state, and federal permits.
(b)
The facility shall provide a bufferyard with a minimum opacity of 1.00 along all borders of the property.
(c)
All buildings, structures, outdoor storage, and any other activity areas shall be located a minimum of three hundred (300) feet from all lot lines.
(d)
Required site plans shall include detailed site restoration plans, which shall include at minimum, detailed grading and re-vegetation plans, and a detailed written statement indicating the timetable for such restoration after cessation of the use. All site restoration plans must be submitted to Dane County.
(e)
Minimum and maximum required parking: See Section 10.06.06.
(3)
Indoor Recycling Facility
Land uses providing indoor materials recycling services including materials unloading, materials storage, materials sorting, and materials shipping. This land use does not involve any outdoor activities, outside of Temporary Outdoor Assembly land uses (see Section 10.03.30(6)).
(a)
Indoor Recycling facilities shall comply with all county, state, and federal regulations.
(b)
Facility shall be surrounded by a bufferyard with a minimum opacity of 1.00 along all borders of the property.
(c)
Operations shall not involve the on-site holding, storage, or disposal of hazardous materials as defined by State Statutes in any manner.
(d)
Minimum and maximum required parking: See Section 10.06.06.
(4)
Salvage or Junkyard
Land or structure used for a salvaging operation including but not limited to: the above-ground, outdoor storage and/or sale of waste paper, rags, scrap metal, and any other discarded materials intended for sale or recycling; and/or the collection, dismantlement, storage, or salvage of unlicensed and/or inoperable vehicles intended for scraping or recycling. Recycling facilities involving on-site outdoor storage of salvage materials are included in this land use. This shall not include Vehicle Service and Repair.
Regulations
(a)
Facility shall provide a bufferyard with a minimum opacity of 1.00 along all property borders abutting residentially zoned property. A minimum six (6) foot fence is permitted within the side yard or rear yard unless the height of the storage exceeds six (6) feet, then the maximum height is eight (8) feet.
(b)
All buildings, structures, outdoor storage areas, and any other activity areas shall be located a minimum of one hundred (100) feet from all lot lines.
(c)
In no instance shall activity areas be located within a landscaping or bufferyard areas.
(d)
Shall not involve the storage, handling, or collection of hazardous materials as defined by State Statutes.
(e)
Minimum and maximum required parking: See Section 10.06.06.
(f)
Facility shall secure a salvage dealer license as required by the State of Wisconsin.
(5)
Sand and Mineral Processing
Land or structure used for processing sand or minerals, extracted on-site or transported to the site, that removes the desired product from the mineral or enhances the characteristics of the sand or mineral.
Regulations
(a)
Facility shall provide a bufferyard with a minimum opacity of 1.00 along all property borders abutting residentially zoned property.
(b)
All buildings, structures, outdoor storage, and any other activity areas shall be located a minimum of one hundred (100) feet from all roads and lot lines.
(c)
In no instance shall activity areas be located within a bufferyard area.
(d)
Shall not involve the storage, handling, or collection of hazardous materials as defined by State Statutes.
(e)
Required site plans shall include detailed site restoration plans, which shall include at minimum, detailed grading and re-vegetation plans, and a detailed written statement indicating the timetable for such restoration after cessation of the use. All site restoration plans must be submitted to Dane County.
(f)
The facility shall comply with all county, state, and federal regulations and be able to provide copies of all approved county, state, and federal permits.
(g)
Minimum and maximum required parking: See Section 10.06.06.
(6)
Waste Disposal/Landfill
Waste disposal facilities are any facilities and/or areas used for the disposal of solid wastes including those defined by Wis. Stat. § 289.01(33), but not including Indoor Recycling or Composting operations.
Regulations
(a)
Waste Disposal/Landfill facilities shall comply with all county, state, and federal regulations.
(b)
Facility shall be surrounded by a bufferyard with a minimum opacity of 1.00 along all borders of the property.
(c)
All buildings, structures, outdoor storage, and any other activity areas shall be located a minimum of three hundred (300) feet from all lot lines.
(d)
Operations shall not involve the on-site holding, storage, or disposal of hazardous materials as defined by State Statutes in any manner.
(e)
Required site plans shall include detailed site restoration plans, which shall include at minimum, detailed grading and re-vegetation plans, and a detailed written statement indicating the timetable for such restoration after cessation of the use.
(f)
Minimum and maximum required parking: See Section 10.06.06.
(1)
Large Solar Energy System
Large Solar Energy Systems are the only principal land use permitted on a property and are designed primarily to generate energy for commercial sale off-site. See Section 10.01.23 for definition of a Solar Energy System and Section 10.03.28(27) for Small Solar Energy Systems.
(a)
Large solar energy systems may exceed the maximum height limit of the zoning district by up to ten (10) feet, but in cases where a rooftop or building-mounted system exceeds the maximum height limit, the panel must be set back from the edge of the roof a minimum distance equal to or greater than the height of the panel.
(b)
Large solar system structures shall be finished in a rust-resistant, non-obtrusive finish, and color that is non-reflective.
(c)
All electrical connections shall be located underground or within a building.
(d)
No large solar energy system shall be lighted unless required by the Federal Aviation Administration.
(e)
Clearing of natural vegetation for the purposes of installing a large solar energy system shall be limited to that which is necessary for the construction, operation and maintenance of the large solar energy system and as otherwise prescribed by applicable laws, regulations, and ordinances.
1.
A Landscaping Plan per Section 10.08.20 is required for the entire property. Soils shall be planted and maintained for the duration of operation in perennial vegetation to prevent erosion, manage run off, and improve soil. The area under ground-mounted solar energy systems are exempt from impervious surface requirements if the area under the system contains ground cover consisting of native pollinator-friendly vegetation, or similar prairie grass seed mix, that will result in a short stature prairie with a diversity of forbs or flowering plants that bloom throughout the growing season. Seed mixes and maintenance practices shall be consistent with recommendations made by qualified landscape architects or natural resource professionals such as those from the Wisconsin Department of Natural Resources, Dane County Land & Water Resources Department, or Natural Resource Conservation Service. Shrubs may be used in buffer areas as appropriate for visual screening.
(f)
All access doors or access ways and electrical equipment shall be lockable.
(g)
A large solar energy system shall require a building permit before installation. Building permit applications shall include the following information in addition to that required by the Building Code:
1.
A site plan drawn to scale showing the location of the proposed large solar energy system and per the requirements of Section 10.10.43.
2.
Elevations of the site drawn to scale showing the height, design, and configuration of the large solar energy system and the heights of all existing structures, buildings and electrical lines in relation to property lines and their distance from the small solar energy system.
3.
A standard foundation design along with specifications for the soil conditions at the site.
4.
Specific information on the type, size, rated power output, performance, and safety characteristics of the system, including the name and address of the manufacturer, model, and serial number.
5.
A description of emergency and normal shutdown procedures.
6.
A line drawing of the electrical components of the system in sufficient detail to establish that the installation conforms to all applicable electrical codes and this Subsection.
7.
Evidence that the provider of electrical service to the property has been notified of the intent to install an interconnected electricity generator, except in cases where the system will not be connected to the electricity grid.
8.
Evidence of compliance with Federal Aviation Administration requirements.
9.
A decommissioning plan shall be required to ensure that facilities are properly removed after their useful life. Decommissioning of solar panels must occur in the event they are not in use for twelve (12) consecutive months. The plan shall include provisions for removal of all structures and foundations, restoration of soil and vegetation and a plan ensuring financial resources will be available to fully decommission the site. The Zoning Administrator may require the posting of a bond, letter of credit or the establishment of an escrow account to ensure proper decommissioning.
(h)
The requirements of Wisconsin Statutes, including but not limited to Wis. Stats. §§ 66.0401 and 66.0403, shall apply to all solar energy systems and in the evaluation of such requests. Solar energy systems are a conditional use.
1.
No restriction shall be placed, either directly or in effect, on the installation or use of a solar energy system, unless the restriction satisfies one (1) of the following conditions:
a.
Serves to preserve or protect the public health or safety.
b.
Does not significantly increase the cost of the system or significantly decrease its efficiency.
c.
Allows for an alternative system of comparable cost and efficiency.
(Ord. No. O1657, § 98, 6-17-2025)
(1)
Agricultural Service
Operations pertaining to the sale, handling, transport, packaging, storage, or disposal of agricultural equipment, products, by-products, or materials primarily used or produced by agricultural operations. Examples of such land uses include, but not limited to, agricultural implement sales, storage, or repair operations; feed and seed stores; agricultural chemical dealers and/or storage facilities; animal feed storage facilities; commercial dairies; food processing facilities; canning and other packaging facilities; and agricultural waste disposal facilities (except commercial Composting uses, see Section 10.03.22(1)).
Regulations
(a)
New Agricultural Service uses shall not be located in an existing or platted residential subdivision.
(b)
All buildings, structures, outdoor storage areas, and outdoor animal containments (pastures, pens and similar areas) shall be located a minimum of one hundred (100) feet from all lot lines.
(c)
Once discontinued for a period of three hundred sixty-five (365) days, Agricultural Service uses shall not be re-established except by the granting of a conditional use permit, and shall only be permitted in the AGR district.
(d)
Minimum required parking: Minimum and maximum required parking: See Section 10.06.06.
(2)
Community or Market Garden
Community or Market Garden areas for cultivation and related activities divided into one (1) or more plots to be cultivated by more than one (1) operator or member. These areas may be on public or private lands where on-site sales of crops are permitted.
Regulations
(a)
Community and Market Gardens are permitted on lots of one (1) acre in size or less. They are permitted to occur on lots with residential dwelling units as a standalone principal use or in combination with a residential dwelling unit principal land use as long as a Home Occupation permit is issued under Section 10.03.28(9)(q) and (r).
1.
All activity and garden areas, signs, and structures shall be located a minimum of ten (10) feet from the lot line.
(b)
A site plan shall be submitted to the Zoning Administrator, for approval. Said site plan shall list the property owner, established sponsoring organization and garden manager, and demonstrate consideration for and indicate locations of structures, materials storage, equipment storage, access for deliveries and pickups, water availability, park shelter, and availability of public parking.
(c)
Accessory Buildings
1.
The following structures are permitted in Community and Market Gardens: tool sheds, shade pavilions, restroom facilities with composting toilets, and planting preparation houses, benches, bike racks, raised/accessible planting beds, compost bins, picnic tables, seasonal farm stands, fences, garden art, rain barrel systems, and children's play areas.
2.
A combined total of one thousand two hundred (1,200) square feet of gross floor area of tool sheds, shade pavilions, restroom facilities, and planting preparation houses are permitted on the property by right. For lots larger than one (1) acre, the maximum permitted combined total of gross floor area of these accessory structures on the property shall be increased by one (1) square foot for every one hundred (100) square feet of lot area over one (1) acre.
(d)
Signs shall comply with the regulations of Chapter 22.
(e)
Fences shall comply with the regulations in Section 10.06.40.
(f)
Seasonal farm stands shall be removed from the premises or stored inside a building on the premises during that time of the year when the garden is not open for public use.
(g)
Minimum and maximum required parking: See Section 10.06.06.
(3)
Cultivation
Operations primarily oriented to the on-site, outdoor raising of plants for commercial purposes. Cultivation includes the raising of trees as a crop to be replaced with more trees after harvesting, such as in nursery or Christmas tree operations. The raising of plants for consumption by farm animals is considered Cultivation if said plants are consumed by animals which are located off-site.
Regulations
(a)
Minimum and maximum required parking: See Section 10.06.06.
(4)
Husbandry
All operations primarily oriented to the on-site raising and/or use of animals at an intensity of less than one (1) animal unit per acre. This includes horses, cattle, sheep, goats, llamas (and related species), deer, antelope, swine, foul (including chickens, turkeys, ducks, geese, peacocks, guinea hens, game birds), aquatic species (including fish, shellfish, crustaceans, echinoderms, plants, and algae), and any animals typically hunted or trapped. Apiaries are also considered Husbandry land uses. This excludes animals typically kept as pets and commonly available at commercial pet stores (e.g., domestic dogs and cats, fish, small rodents, reptiles, amphibians, tropical/exotic birds), in addition to Residential Apiary accessory land uses (see Section 10.03.28(22)).
Regulations
(a)
Any building housing animals shall be located a minimum of three hundred (300) feet from any residentially zoned property, and one hundred (100) feet from all other lot lines.
(b)
All outdoor animal containments (pastures, pens, and similar areas) shall be located a minimum of one hundred (100) feet from any residentially zoned property.
(c)
Minimum and maximum required parking: See Section 10.06.06.
(5)
Intensive Agriculture
All operations primarily oriented to the on-site raising and/or use of animals at an intensity equal to or exceeding one (1) animal unit per acre and/or agricultural activities requiring structures, equipment and/or infrastructure specific to one (1) operation rather than to farming in general. Examples of such land uses include feed lots, hog farms, poultry operations, aquaculture, and other operations meeting this criterion.
Regulations
(a)
New Intensive Agricultural uses shall not be located in or adjacent to an existing or platted residential subdivision.
(b)
All buildings, structures, outdoor storage areas, and outdoor animal containments (pastures, pens, and similar areas) shall be located a minimum of three hundred (300) feet from all residentially zoned property and one hundred (100) feet from all other lot lines.
(c)
Intensive Agricultural uses shall be completely surrounded by a bufferyard with a minimum opacity of 1.0.
(d)
Minimum and maximum required parking: See Section 10.06.06.
(6)
On-Site Agricultural Retail
The sale of agricultural products grown exclusively on the site. The sale of products grown or otherwise produced off-site shall not be permitted within On-Site Agricultural Retail operations and shall be regulated as a distinct land use. Packaging and equipment used to store, display, package, or carry products for the convenience of the operation or its customers (such as egg cartons, baskets, containers, and bags) shall be produced off-site.
Regulations
(a)
All structures shall meet all required setbacks for nonresidential land uses.
(b)
On-Site Agricultural Retail uses, once discontinued for a period of three hundred sixty-five (365) days, shall not be re-established except with the granting of a conditional use permit, and shall only be permitted in the AGR district.
(c)
Minimum and maximum required parking: See Section 10.06.06.
(1)
Accessory Dwelling Unit (ADU):
1) Residential dwellings located directly above the ground floor of a building used for an office, commercial, or institutional land use, or 2) a residential dwelling unit located on the same lot as a single-family or two-family dwelling unit, either in the same building or in a detached building. An ADU is independently habitable and provides the basic requirements of shelter, heating, cooking and sanitation. A manufactured home may be used as an accessory dwelling unit.
Regulations
(a)
The number of occupants of the Accessory Dwelling Unit shall not exceed one family.
(b)
Additional entrances shall not be added to the front elevation of an existing building but may be added to side, rear, or street side elevations.
(c)
Accessory Dwelling Unit entryways within a rear, side, or street side yard shall be connected to a street frontage by a paved walkway or driveway. The owner shall post one on-building locational sign displaying the address of the ADU, in compliance with Section 22.05(3) and Figure 22.11(3) of the sign ordinance.
(d)
Accessory Dwelling Units shall adhere to the principal setback requirements and other regulations for the underlying zoning district.
(e)
For Accessory Dwelling Units located on the same lot as a single-family or two-family dwelling unit, the following additional regulations shall apply:
1.
The principal building or Accessory Dwelling Unit must be occupied by the owner of the property as their primary residence for a period of at least ten months in a calendar year. A restrictive agreement between the property owner and the City shall be recorded prior to issuance of a zoning permit and occupancy being granted.
2.
The Accessory Dwelling Unit shall not be sold separately or otherwise conveyed or titled separately from the principal dwelling.
3.
The maximum size of an Accessory Dwelling Unit shall not exceed the size of the principal dwelling's floor area.
4.
The appearance or character of the principal building must not be significantly altered so that its appearance is no longer that of a single-family or two-family dwelling.
(f)
Minimum required off-street parking: None
(g)
A Zoning Permit shall be required pursuant to Section 10.10.41 prior to establishing any Accessory Dwelling Unit.
(h)
Neither fees in-lieu of parkland, nor park improvement fees shall be charged for a permit to construct an Accessory Dwelling Unit.
(2)
Boathouse
A permanent structure used for the storage of watercrafts and associated materials and includes all structures which are totally enclosed, have roofs or walls or any combination of structural parts (Wis. Admin. Code Chap. NR 325.03).
(a)
Boathouses are subject to the requirements of Wis. Stat. § 30.121 and Wis. Admin. Code Chap. NR 325.
(3)
Communication Antenna
Devices used for the transmission or reception of electromagnetic waves, attached to a Communication Tower, building, or alternative tower structures, including associated equipment buildings/cabinets.
Regulations
(a)
Applicability
1.
A different use on the same lot shall not preclude the installation of an antenna or tower on such lot.
2.
This land use category includes the placement of new antennas and equipment buildings used in conjunction with an existing tower.
3.
Allowed as a permitted use in all zoning districts if the communication antenna meets all requirements in Subsection (b) below.
(b)
General Requirements
1.
Compliance with Federal Regulations
Towers shall be erected and installed in accordance with the state electrical code adopted by reference in § 10-31 et seq., National Electrical Safety Code, Federal Communications Commission, Federal Aviation Administration, and the instructions of the manufacturer. In cases of conflict, the stricter requirements shall govern.
2.
Antennas shall not encroach into airspace prescribed by the most current Airport Height Limit Map. See Section 10.02.83.
3.
Co-Location of Communication Antennas on Communication Tower and Commercial Building
Antennas may be placed on commercial communication towers, and commercial, institutional, and industrial buildings.
a.
Unless applicant is submitting an application to locate or co-locate upon an existing tower or structure, an analysis shall be prepared by or on behalf of the applicant; subject to the approval of the Plan Commission, which identifies all reasonable, technically feasible alternative locations and/or facilities which would be useable for the proposed personal wireless services. The intention of the alternatives analysis is to present alternative strategies which would minimize the number, size and adverse environmental impacts, including aesthetics, of facilities necessary to provide the needed services to the City and surrounding rural and urban areas. The analysis shall address the potential for co-location at an existing or a new site and the potential to locate facilities as close as possible to the intended service area. It shall also explain the rationale for selection of the proposed site in view of the relative merits of any of the feasible alternatives. Approval of the project is subject to the Plan Commission making a finding that the proposed site results in fewer or less severe environmental impacts, including aesthetics, than any feasible alternative site. The City may require independent verification by a qualified engineer of this analysis at the applicant's expense. Facilities which are not proposed to be co-located with another telecommunication facility shall provide a written explanation why the subject facility is not a candidate for co-location.
4.
Height Requirements
Antenna height shall be restricted to one hundred (100) feet above grade when located on a commercial communication tower. Antenna height shall be restricted to twenty (20) feet above the height of the commercial building roof or alternative tower structure when located on such structure. District height restrictions shall not apply to antennas.
5.
Alternative Structures
Antennas may be placed on alternative tower structures such as clock towers, bell steeples, light poles, water towers, or similar structures.
6.
Advertising
No form of advertising or identification, sign or mural is allowed on the antenna other than the customary manufacturer identification plate.
7.
Structural and electrical plans showing how the proposed tower will accommodate the co-location of the applicant's antenna and comparable antennas of additional users; and the plans and specifications whereby the proposed tower is designed to allow for future rearrangement of antennas to accommodate additional users and the mounting of additional antennas at varying heights.
8.
Stealthing Requirements
a.
Antennas and supporting electrical and mechanical equipment must be of a neutral color that is identical to, or closely compatible with, the color of the supporting structure so as to make the antenna and related equipment as visually unobtrusive as possible.
b.
A wall-mounted antenna shall be as flush to the wall as technically possible and shall not project above the wall on which it is mounted unless it must for technical reasons. The antenna and cables on roofs shall not be visible from an adjacent public right-of-way.
(c)
Equipment Buildings
Equipment buildings, including cabinets, used in connection with commercial communication antennas will be subject to the following conditions:
1.
Any location and impact of the equipment buildings shall be made as minimal as possible so as not to prevent the principal use of the property.
2.
Exterior storage of ground-mounted equipment or materials shall not be permitted.
3.
Equipment buildings or structures may be mounted on the roof of a building provided that such building or structure is placed as unobtrusively as possible (e.g. integrated into the roof design) and surrounded by a bufferyard with a minimum opacity of 0.40.
4.
Any ground-mounted equipment building used for accessory equipment must either be screened from view from all abutting residential uses and potentially incompatible municipal uses with a bufferyard with a minimum opacity of 0.40, or the equipment building must be constructed with similar materials, style, roof pitch, etc., to complement the architectural character of the surrounding neighborhood.
5.
All ground-mounted equipment buildings shall at a minimum meet the required setbacks of a principal structure for the underlying zoning district, and shall be located in the side or rear yards.
(d)
Exceptions
Exceptions to the setbacks and height requirements listed above may be granted by the Board of Zoning Appeals if appropriate engineering data is submitted showing that failure characteristics of the structure will not adversely impact abutting property and the structure does not encroach into airspace prescribed by the most current Airport Height Limit Map. See Section 10.02.83.
(e)
Abandonment
1.
The applicant shall provide a written agreement stating that if the antenna or transmitters are unused for a period exceeding three hundred sixty-five (365) days, the applicant shall remove the antenna or transmitters upon request from the City.
2.
Within thirty (30) days of the date on which the antenna use ceases, the permit holder shall provide the commission written notice of the cessation of use.
3.
If unused facilities are not removed, the City may remove the items at the expense of the owner of the property upon which the tower was placed.
(f)
Exempt Facilities
1.
Publicly owned and operated facilities required in the public interest to provide for and maintain a radio frequency telecommunication system, including digital, analog, wireless or electromagnetic waves, for police, fire and other municipal services.
(g)
Applications and Fees
1.
All co-location applications must be processed within the timeframes set forth by the Federal Communications Commission. Any application for the co-location of small wireless facilities must be processed by the City within sixty (60) days of receiving a completed application and any other co-location facility application must be processed within ninety (90) days of receiving a completed application.
2.
All fees associated with small wireless facilities must be a reasonable approximation of the objectively reasonable cost associated with maintaining infrastructure or processing an application in accordance with the maximum values set forth by the Federal Communications Commission.
(4)
Company Cafeteria
A food service operation which provides food only to company employees and their guests.
Regulations
(a)
Company Cafeterias shall meet state food service requirements.
(b)
Company Cafeterias shall be located on the same property as a principal land use engaged in an operation other than food service.
(5)
Detached Accessory Building
Detached buildings accessory to a principal use including but not limited to buildings used to shelter parked passenger vehicles (including garages and carports), sheds and similar structures used to store maintenance equipment on the subject property, workshops, kennels, greenhouses, boathouses, and pool houses, per the Building Code. Such structures shall comply with the definition for Accessory Structure, Detached in Section 10.01.23. Site plan review pursuant to 10.10.43 is required for any such structure to be placed on a parcel located in any zoning district with the exception of SR-L, SR-M, SR-H, MH-D, TR-D, and TR-F.
Regulations
(a)
Size
A combined total of one thousand (1,000) square feet of building footprint area for all detached accessory buildings on the property is permitted by right. For lots larger than one acre, the maximum permitted combined total of the building footprint area of all detached accessory buildings on the property shall be increased by one square foot for every one hundred (100) square feet of lot area over one acre. In no instance shall the detached accessory building area exceed the ground floor area of the principal building. Attached garages shall not count toward this total.
(b)
Height
See Article II for detached accessory building maximum building heights.
(c)
Location
Detached accessory buildings are permitted in the rear yard and side yards only, in compliance with minimum setback requirements for accessory structures.
1.
For existing lakeshore lots having overall dimensions capable of supporting a dwelling structure and a garage and existing on August 17, 1984, carports, garages, storage structures, and accessory dwelling units may be located on the side of the lot having street frontage, at a specific location to be determined by the Zoning Administrator, guided by the principle that vehicles parked in the driveway shall not overhang the functioning street right-of-way.
(6)
Electric Vehicle Charging
Includes all indoor and outdoor charging facilities for electric and hybrid electric vehicles. This land use is typically accessory to on-site parking, off-site parking, driveways, or indoor parking facilities.
Regulations
(a)
Equipment
Vehicle charging equipment must be designed and located so as to not impede pedestrian, bicycle, or wheelchair movement or create safety hazards.
(b)
Posted Information
Information must be posted identifying voltage and amperage levels and any type of use, fees, or safety information related to the electric vehicle charging station.
(c)
Maintenance
Electric vehicle charging stations must be maintained in all respects, including functioning of the equipment. A phone number or other current contact information must be provided on the equipment for reporting when it is not functioning, or other problems are encountered.
(d)
Electric vehicle charging in all residential zoning districts (see Article II) shall not be operated as a commercial venture and is limited to use only by residents and guests of residents.
(e)
Parking requirements for Electric Vehicle Charging can be found in Section 10.06.06(6).
(7)
Farm Residence
A Farm Residence is a single-family detached dwelling unit located on the same property as any of the principal agricultural land uses listed in Section 10.03.26.
(8)
Minor Accessory Structures and Obstructions
Minor accessory structures are those features that are generally less than sixteen (16) feet in height and less than one hundred twenty (120) square feet in area and which, in the determination of the Zoning Administrator, are similar in size, character, and function to those listed. Obstructions are those features that are integral to or otherwise permanently attached to the principal structure. Other integral or attached features, which in the opinion of the Zoning Administrator are not similar to those listed in this table, shall comply with the principal building setbacks. See Section 10.01.23 for definitions of awning, balcony, canopy, deck, patio, porch, and recreational equipment.
Regulations
(a)
All items must stay out of the vision triangle.
(9)
Home Occupation
Economic activities performed within a principal or accessory residential dwelling unit that do not significantly alter the residential character of the dwelling unit, dwelling structure, or the parcel and are secondary and incidental. Examples include personal and professional services, handicrafts, and retail conducted online. Home Occupations are intended to provide a means to accommodate a small home-based family or professional business without the necessity of a rezoning from a residential to a business district. Home Occupations are those that include on-site customers or non-resident employees and are limited to low intensity businesses and businesses with limited overlap of customer visits. As of the adoption of this Ordinance, any existing Home Occupation land use is a legal conforming land use.
Regulations
(a)
The Home Occupation shall be conducted only within the enclosed area of the dwelling unit or the enclosed area of a residential accessory building or garage.
(b)
The Home Occupation shall be conducted by a resident who uses the location of the Home Occupation as their principal residence.
(c)
No more than two (2) clients shall be seen at any given time.
(d)
No Home Occupations shall have outside employees or clients between the hours of 7:00 p.m. and 8:00 a.m.
(e)
There shall be no exterior evidence of the Home Occupation and no exterior alterations which change the character of the structure as a residential dwelling unit.
(f)
No structural alterations or construction involving features not customarily found in dwellings are allowed.
(g)
No storage or display of materials, goods, supplies, or equipment related to the operation of the Home Occupation shall be visible outside any structure located on the premises.
(h)
There shall be no adverse impact to the residential character of the neighborhood due to the emission of noise, odor, smoke, dust, gas, heat, vibration, electrical interference, traffic congestion, or other nuisances resulting from the Home Occupation.
(i)
The Home Occupation shall not involve the use of commercial vehicles for more than occasional delivery of materials to or from the premises.
(j)
No vehicle larger than one (1) ton capacity truck or van that is used in conjunction with a home occupation shall be stored on the premises or parked on adjacent residential streets. This prohibition shall also include specialized mobile equipment. Trailers will be allowed to park on the residential street provided that a home occupation permit is approved, the trailer is registered and a fee paid, and the trailer is safely parked adjacent to the permitted property in accordance with City on-street parking regulations.
(k)
No mechanical equipment or machinery shall be used other than is usually, customary, and incidental to the residence for domestic or hobby purposes.
(l)
The percentage of the gross finished floor area that may be devoted to the Home Occupation(s) shall not exceed twenty (20) percent of the principal structure, or three hundred (300) square feet, whichever is less.
(m)
Home Occupations shall be carried out only by members of the immediate family residing on the premises and one (1) non-resident employee.
(n)
The Home Occupation shall not involve manufacturing; processing; the sales or repair of large appliances, vehicles, or motors; commodity or equipment rental; care, grooming, breeding, or keeping of animals; or construction of equipment and machinery. Restaurants, taverns, clubs, amusement or entertainment establishments, or uses that dispatch persons other than the occupant of the residence or equipment from the premises are not permitted Home Occupations.
(o)
Items shall not be sold or offered for sale on the premises. This provision shall not apply to online sales.
(p)
Minimum required parking: One (1) space is required if there is a non-resident employee. Employee parking in the driveway is permitted.
(q)
Permit Required
1.
The applicant shall submit a completed application and any supporting documentation to the Zoning Administrator.
2.
A permit shall not be issued until the Zoning Administrator determines that the proposed Home Occupation complies with the standards as set forth in this Ordinance.
a.
All Community or Market Garden uses shall be required to obtain a Home Occupation permit, but are only subject to the provisions of Section 10.03.26(2).
3.
A permit for Home Occupation is valid for three hundred sixty-five (365) days annually (January to December). It must be renewed every year, subject to the provisions of this Section.
(r)
Special Permit Provisions
1.
Approvals/permits required by other regulatory bodies such as the Health, Police, or Fire Departments must be submitted prior to the issuance of the Home Occupation permit.
2.
A permit for a Home Occupation is issued to an individual person. It is not transferable to any other resident, address, or other occupation. Upon termination of the permit holder's residency, the Home Occupation permit shall be null and void.
3.
A permit for a Home Occupation shall be revocable by the Zoning Administrator, due to failure of the owner/operator to observe all requirements of the permit and/or Zoning Ordinance.
(10)
Incidental Indoor Sales
Retail sales activity conducted exclusively indoors which is incidental to a principal land use such as Indoor Storage and Wholesaling on the same site.
Regulations
(a)
The total area devoted to sales activity shall not exceed twenty-five (25) percent of the total area of the buildings on the property.
(b)
Minimum required parking: Adequate parking, per the requirements of Section 10.06.06, shall be provided for customers. Said parking shall be in addition to that required for the principal land use.
(11)
Incidental Light Industrial
Light industrial activities conducted exclusively indoors which is incidental to a principal land use, such as Indoor Sales or Service, on the same site.
Regulations
(a)
The total area devoted to light industrial activity shall not exceed fifteen (15) percent of the total area of the buildings on the property.
(b)
Minimum required parking: See Section 10.06.06.
(12)
Incidental Outdoor Sales and Display
The sale and display of merchandise or equipment outside of an enclosed building and is incidental to a principal commercial or industrial land use.
Regulations
(a)
Incidental Outdoor Sales and Display land uses shall comply with all regulations of Section 10.03.10(19).
(b)
The display area shall not be greater than the equivalent to five (5) percent of the gross floor area of the building. Display area in excess of equivalent to five (5) percent of the gross floor area of the building shall be considered Outdoor Sales and Display as a principal use under Section 10.03.10(19).
(c)
All outdoor display areas shall be located no closer to a residentially zoned property than the required minimum setback for buildings on the subject property.
(d)
The display of items shall not be permitted in any landscaping areas, bufferyard areas, or green space areas.
(e)
In no event shall the display of items reduce or inhibit the use or number of parking stalls provided on the property below the requirements applicable to the principal use. If the number of provided parking stalls on the property is already less than the requirement, display areas shall not further reduce the number of parking stalls already present.
(f)
Outdoor display areas shall be separated from any vehicular parking or circulation area by a minimum of ten (10) feet. This separation shall be clearly distinguished by a physical feature or barrier such as a greenway, curb, fence, line of planters, or by a clearly marked paved area.
(g)
Signs, screening, enclosures, landscaping, or materials being displayed shall not interfere in any manner with either on-site or off-site traffic visibility, including potential traffic/traffic and traffic/pedestrian conflicts.
(13)
Incidental Office
Indoor Offices where the accessory function is the handling of information or administrative services. Office uses do not typically provide services directly to customers on a walk-in basis.
(a)
The gross floor area devoted to office activity shall not exceed twenty-five (25) percent of the total gross floor area of the buildings on the property.
(b)
Minimum required parking: See Section 10.06.06.
(14)
Incidental Outdoor Storage
Outdoor storage which is incidental to a principal land use, such as Indoor Sales or Service, on the same site.
Regulations
(a)
All open storage areas and open containers shall be fully screened from view by a wall and a solid gate made of wood or similar material. The exterior of the wall must match the materials and color of the principal structure and shall be a minimum of eight (8) feet in height.
(b)
The storage area shall not exceed five (5) percent of the gross building floor area or up to five hundred (500) square feet, whichever is less. Storage area in excess of five (5) percent of the gross building floor area or five hundred (500) square feet shall be regulated as Outdoor Storage and Wholesaling under Section 10.03.16(2).
(15)
In-Family Suite
An area within a dwelling unit that may contain separate kitchen, dining, bathroom, laundry, living, and sleeping areas, including exterior porches, patios, and decks. In addition to the required internal physical connection, separate outdoor access or separate access to the garage may be provided. However, external entries serving as the primary or only access to the In-Family Suite are prohibited.
Regulations
(a)
In-Family Suites may not be occupied by a non-family member.
(b)
The maximum floor area cannot exceed twenty (20) percent of the existing dwelling unit's finished habitable area.
(c)
In-Family Suites shall be considered and regulated as part of a single-family dwelling unit.
(d)
The principal dwelling unit and the In-Family Suite shall together appear as a single-family dwelling.
(e)
A separate walled garage area or driveway is not permitted.
(f)
A separate address for the In-Family Suite is not permitted.
(g)
A separate utility connection or meters are not permitted.
(h)
A physical all-weather connection between the main living area and the In-Family Suite must be present. This required connection may not occur through an attic, basement, garage, porch, or other non-living area. A door may be used to separate the In-Family Suite from the principal dwelling, but may not be locking, except that a locking door may be used for the bedroom and bathroom doors of the In-Family Suite.
(i)
When an application is submitted for a building permit to accommodate what is explicitly listed as, or could possibly serve as, an In-Family Suite, the building plan shall be marked as "not a separate dwelling unit or apartment," and a signed letter from the applicant stating agreement with this condition shall be filed.
(16)
In-Home Daycare
Occupied residences in which a licensed person or persons provide childcare for four (4) to eight (8) children. The care of less than four (4) children is not subject to the regulations of this Chapter. Wis. Stat. § 66.1017(1)(a).
(17)
Migrant Employee Housing
Migrant Employee Housing includes any facility subject to the regulation of Wis. Stat. § 103.90(3)(a).
Regulations
(a)
Migrant Employee Housing shall be surrounded by a bufferyard with a minimum opacity of 0.60 along all property lines adjacent to all properties in residential or mixed-use zoning districts.
(b)
Migrant Employee Housing shall be an accessory use to an active principal land use and under the same ownership.
(18)
Nonresidential Accessory Structure
Structures primarily used to shelter business vehicles or to store maintenance equipment for the subject property.
Regulations
(a)
The combined floor area of all structures shall not exceed the floor area of the principal building on the parcel.
(b)
See Article II for accessory structure maximum building heights and setbacks.
(c)
All nonresidential accessory structures must meet the design requirements of the principal land use on the site. See Article VII.
(19)
On-Site Parking Lot
On-Site Parking Lots are any areas located on the same site as the principal land use which are used for the temporary surface parking of vehicles which are fully registered, licensed, and operable. See Section 10.06.06 for additional parking regulations.
Regulations
(a)
Access and vehicular circulation shall be designed to prevent cut-through traffic.
(20)
On-Site Structured Parking
Structured parking which is accessory to a principal land use such as Apartments, Office, and Mixed-Use Buildings, and which is incorporated into the same building as the principal land use. Stand-alone structured parking that is not integrated with another land use shall be regulated as Off-Site Structured Parking, a principal use under Section 10.03.18(6). See Section 10.06.06 for additional parking regulations.
Regulations
(a)
On-Site Structured Parking shall comprise no more than fifty (50) percent of the ground floor level on the primary street frontage. Underground parking that is partially above grade shall not count toward this total.
(21)
Personal Antenna and Towers
Devices used for the transmission or reception of electromagnetic waves, external to or attached to the exterior of any building. This definition includes the structure, supports, and equipment buildings. This land use applies to antenna and towers for personal use. Examples include amateur radio antenna and personal television antenna.
Regulations
(a)
In the SR-L, SR-M, and SR-H districts, there may only be one (1) roof-mounted antenna and one (1) tower per lot. In all other districts there may be one (1) antenna for each dwelling unit or business and one (1) tower per lot.
(b)
In all districts, freestanding towers with antennas may not be located in a front yard or street side yard or closer to the right-of-way than the closest edge of the principal building, whichever is less.
(c)
The minimum required setback for freestanding towers with antennas shall be equal to the combined height of the tower and antenna.
(d)
Towers are restricted to fifty (50) feet and roof-mounted antennas are restricted to thirty (30) feet above the highest peak of the roof.
(e)
Guy wires shall not be anchored within a provided front yard or provided street side yard or closer to the right-of-way than the closest edge of the principal building, whichever is less. It shall be installed in such a manner as to protect the public safety and to minimize the visual impact on surrounding properties and from public streets.
(f)
The attachment to an antenna or tower of any flag, decorative or commercial sign, streamers, pennants, ribbons, spinners or waving, fluttering or revolving devices is prohibited.
(22)
Residential Apiary
The assembly of one (1) or more colonies of honey bees.
(a)
No bees shall be intentionally kept and maintained other than honey bees.
(b)
No more than six (6) hives may be kept on a single parcel and no hive shall exceed twenty (20) cubic feet in volume.
(c)
No hive shall be located closer than three (3) feet from any property line in different ownership.
(d)
No hive shall be located closer than ten (10) feet from a public right-of-way or twenty-five (25) feet from a principal building on an abutting property in different ownership.
(e)
A constant supply of water shall be provided for all hives.
(f)
A flyway barrier at least six (6) feet in height shall shield any part of a property line in different ownership that is within twenty-five (25) feet of a hive. The flyway barrier must effectively direct bees to fly up and over the barrier when flying in the direction of the barrier. The flyway barrier shall consist of a wall, fence, dense vegetation, or combination thereof, and it shall be positioned to transect both legs of a triangle extending from an apex at the hive to each end point of the part of the property line to be shielded. The barrier shall further comply with any applicable fence regulations contained in Section 10.06.40.
(23)
Residential Kennel
An enclosed structure designed for the keeping of dogs that is accessory to a residential use.
Regulations
(a)
Outdoor containments for dogs shall be subject to the setback requirements for accessory structures for the district in which they are located.
(b)
All dogs must be licensed. See Chapter 7 of the City of Middleton Municipal Code.
(24)
Residential Stable
An accessory structure that is designed for the keeping of equines for the private use of the occupants of the principal dwelling and their guests, but in no event for hire.
Regulations
(a)
Outdoor containments for equines shall be located a minimum of twenty-five (25) feet from any residentially zoned property.
(b)
A minimum lot area of one hundred seventy-five thousand (175,000) square feet (four (4) acres) is required for a private residential stable.
(c)
A maximum of one (1) horse per two (2) acres of fully enclosed (by fencing and/or structures) area is permitted.
(d)
The minimum permitted size of horse or similar animal stall shall be 100 square feet.
(25)
Satellite Dish
A bowl-shaped antenna with which signals are transmitted to or received from a communications satellite. This land use applies to dishes for personal use and private use.
Regulations
(a)
In all districts, satellite dishes less than three (3) feet in diameter may be located anywhere on a lot, except the provided front yard or provided street side yard, or can be located on any principal or accessory building.
(b)
In the SR-L, SR-M, SR-H, MH-D, TR-D, TR-F, MR-L, MR-M, and MR-H districts satellite dishes three (3) feet in diameter and larger may only be located in rear yards or on the roof of a detached structure, so long as the height of the detached garage and the dish is equal to or less than the height of the principal building.
(c)
In all other districts, satellite dishes three (3) feet in diameter and larger may be erected on the roof of any principal or accessory buildings, and in side or rear yards; but shall not be located in street or front yards.
(d)
No advertising or graphic designs exceeding one (1) square foot are permitted on satellite dishes in any zoning district.
(e)
In the event that a usable signal cannot be obtained by locating a satellite dish in locations permitted by this Chapter, the Board of Zoning Appeals may grant a variance to allow the placement of a satellite dish in any location.
(26)
Short-Term Residential Rental
Includes all lodging places and tourist cabins and cottages, other than hotels and motels, in which sleeping accommodations are offered for pay to tourists and transients. It does not include private boarding houses (Section 10.03.06(12)) or rooming houses not accommodating tourists or transients, or bed and breakfast establishments regulated under Wis. Admin. Code ACTP § 73.
(a)
Definitions
1.
"Tourist or Transient" means a person who travels to a location away from his or her permanent address for a short period of time, not to exceed thirty (30) days for vacation, pleasure, recreation, culture, business or employment.
2.
"Operator" is a person who is the owner or lessee of property being used as a Short-Term Residential Rental and who is conducting the Short-Term Residential Rental business by, among other things, interacting digitally and in person with guests and is identified in Short-Term Residential Rental listings and advertisements as the Short-Term Residential Rental "host." An operator may not be an LLC, Trust, Nonprofit, or other corporate entity.
3.
"Primary Residence" means a dwelling unit that serves as an individual's true, fixed and permanent home for at least one hundred eighty-three (183) days in a calendar year and to which, whenever absent therefrom, that individual intends to return. Additional characteristics of a primary residence include, but are not limited to, where an individual receives mail, claims residence for purposes of voter registration, pays for utilities, and lists as their address on state issued identification cards. An individual can have only one (1) primary residence.
(b)
Permitted by Right
All zoning districts.
1.
Land Use Requirement
Short-Term Residential Rental shall only be located as an Accessory Land Use to a Residential Land Use as defined in Section 10.03.06.
2.
Annual City License Required
Each Short-Term Residential Rental shall operate only during the valid period of an Annual City of Middleton Short-Term Residential Rental License for each calendar year. Operating a Short-Term Residential Rental without a current version of a valid license shall be considered a violation of this Zoning Ordinance, and subject to the penalties of Section 10.10.60. The following information shall be provided on an annual basis, prior to issuance of said Annual City of Middleton Short-Term Residential Rental License:
a.
Completed City of Middleton Short-Term Residential Rental Application, which includes the property owner's contact information; the designated operator's contact information; emergency contact information, the period of operation; and room tax registration information;
b.
A current floor plan for the Short-Term Residential Rental at a minimum scale of one (1) inch equals four (4) feet, and Site Plan of the property at a minimum scale of one (1) inch equals ten (10) feet showing on-site parking spaces and trash storage areas;
c.
General Building Code Inspection by City, and submittal of Official Building Code Inspection Report with no outstanding compliance orders remaining;
d.
Proof of valid property and liability insurance for the dwelling unit;
e.
Copy of State of Wisconsin Tourist Rental House License;
f.
Copy of Public Health Madison Dane County Tourist Rooming House License;
g.
Payment of an Administrative Fee, set annually by the City, to cover the costs to the City of administering the above.
h.
The City of Middleton Short-Term Residential Rental License shall be issued with the completion of the above requirements.
3.
Property Management Requirements
Each Short-Term Residential Rental shall be managed consistent with the following requirements:
a.
Only the owner of the property may operate a Short-Term Residential Rental, except that a renter may operate if explicitly allowed in the lease. A property owner proposing to operate a Short-Term Residential Rental in a dwelling unit that is subject to rules, regulations, or bylaws of a condominium association may only operate the dwelling unit as Short-Term Residential Rental if explicitly allowed by the condominium association.
b.
If the Short-Term Residential Rental is operated for stays of more than six (6) but fewer than twenty-nine (29) consecutive days, the Short-Term Residential Rental may be operated for no more than one hundred eighty (180) days in any consecutive three hundred sixty-five (365) day period as provided in Wis. Stat. § 66.1014(2)(d). The one hundred eighty (180) allowable days in any three hundred sixty-five (365) day period must run consecutively and the Short-Term Residential Rental operator must give the Zoning Administrator notice of the first rental of any three hundred sixty-five (365) day period.
c.
If the Short-Term Residential Rental is operated for stays of one (1) to six (6) consecutive days, the tourist rooming house shall be the operator's primary residence.
d.
If an operator who is operating a Short-Term Residential Rental pursuant to Subsection 3.c. above occupies the residence at the time of rental, there is no limit to the number of days the Short-Term Residential Rental may operate.
e.
If an operator who is operating a Short-Term Residential Rental pursuant to Subsection 3.c. above does not occupy the residence at the time of rental, the Short-Term Residential Rental may operate no more than thirty (30) days per permitting year.
f.
Maximum tourist or transient occupancy shall not exceed the lesser of two (2) times the number of legal bedrooms in the dwelling unit or twelve (12). Children under the age of twelve (12) shall not count toward the maximum tourist occupancy.
g.
Each Short-Term Residential Rental shall provide and maintain a Guest Register and shall require all guests to register their true names and addresses before allowing occupancy. The Guest Register shall be kept intact and available by the operator for inspection by representatives of the City for at least one (1) year from the day of the conclusion of the period of operation.
h.
Each Short-Term Residential Rental shall maintain the following written Business Record for each rental of the Short-Term Residential Rental: the true names and addresses of any person renting the property, the dates of the rental period (which must be a minimum of one (1) consecutive day), and the monetary amount or consideration paid for the rental. The Business Record shall be kept intact and available by the operator for inspection by representatives of the City for at least one (1) year from the day of the conclusion of the period of operation.
4.
Property Operational Requirements
Each Short-Term Residential Rental shall be operated per the following requirements:
a.
Parking Requirements
i.
A minimum of one (1) off-street parking space shall be provided on the subject property for each Short-Term Residential Rental. If the Short-Term Residential Rental provides three (3) or more bedrooms, an additional on-site parking space is required for each additional bedroom over two (2).
ii.
All guest parking for vehicles and trailers shall be within a legal off-street parking space on an area paved with concrete or asphalt. No parking is permitted on gravel, lawn, or planter bed areas. Street parking for guests is not permitted.
b.
Site Appearance Requirements
i.
Aside from a changing mix of guests and their vehicles, there shall be no evidence of the property being used as a Short-Term Residential Rental visible on the exterior of the subject property.
ii.
No exterior signage related to the Short-Term Residential Rental is permitted, other than the property address.
iii.
No outdoor storage related to the Short-Term Residential Rental land use is permitted, except for typical residential recreational equipment, seating, and outdoor cooking facilities which are permitted only within the rear yard.
iv.
No recreational vehicle, camper, tent, or other temporary lodging arrangement shall be permitted to accommodate guests.
c.
Neighborhood Impact Requirements
i.
No outdoor activity shall occur between the hours of 10:00 p.m. and 7:00 a.m.
ii.
At all times, no noise, lighting, odor or other impacts from the subject property shall be detectable at the property line at levels exceeding the requirements of Article VI of the Middleton Zoning Ordinance.
iii.
No vehicular traffic shall be generated by the Short-Term Residential Rental at levels exceeding those typical for a detached single-family dwelling unit.
d.
Short-Term Residential Rental Advertising
i.
No outdoor advertising is allowed on the subject property.
ii.
The Short-Term Residential Rental shall not be advertised for availability in any form of media unless the required City of Middleton Short-Term Residential Rental License has been issued.
5.
Penalties and License Revocation
a.
For violations see Section 10.10.60.
b.
The Annual Short-Term Residential Rental License may be revoked for more than two (2) violations of the requirements of the License, the requirements specific to Short-Term Residential Rental, the License, or the remainder of Zoning Code.
(27)
Small Solar Energy System
Small Solar Energy Systems are accessory to a principal land use on a property and are designed primarily to generate energy for said principal land use. See Section 10.01.23 for definition of a Solar Energy System.
Regulations
(a)
Except for in the Conservancy (CON) district, where they are allowed only as a conditional use, solar energy systems (rooftop, building-mounted, and freestanding) are permitted uses in all zoning districts as accessory structures. All restrictions on platted land that prevent or unduly restrict the construction and operation of solar energy systems, are void (Wis. Stats. § 236.292).
(b)
Freestanding solar energy systems shall only be located within the side and rear yards.
1.
They shall not be considered an impervious surface in the measurement of the maximum impervious surface ratio if the surface under the panels is pervious.
(c)
Rooftop and building-mounted small solar energy systems may exceed the maximum height limit of the primary structure by up to ten (10) feet, but in cases where the system exceeds the maximum height limit, the panel must be setback from the edge of the roof a minimum distance equal to or greater than the height of the panel.
(d)
See Article II for specific bulk, density, and intensity requirements for accessory structures in each district. There are no screening or design requirements for Small Solar Energy Systems.
(e)
The City will apply Wis. Stats. §§ 66.0401 and 66.0403 in the evaluation of small solar energy system plans.
1.
No restriction shall be placed, either directly or in effect, on the installation or use of a solar energy system, unless the restriction satisfies one (1) of the following conditions:
a.
Serves to preserve or protect the public health or safety.
b.
Does not significantly increase the cost of the system or significantly decrease its efficiency.
c.
Allows for an alternative renewable system of comparable cost and efficiency.
(28)
Small Wind Energy System
A wind energy conversion system consisting of a wind turbine, a tower and associated control or conversion electronics which will be used primarily to reduce on-site consumption of utility power. Small wind energy systems have a total installed nameplate capacity of three hundred (300) kW or less and consist of individual wind turbines that have an installed nameplate capacity of not more than one hundred (100) kW.
(a)
This Section provides the standards and procedures for issuance of conditional use permits for wind energy systems, as defined in Wis. Stat. § 66.0403(1)(m). The purpose of this Section is to ensure any proposed wind energy system complies with applicable provisions of Wis. Admin. Code Chap. PSC 128, as amended, and this Section.
(b)
Wind energy systems are a conditional use in every district. The City will apply Wis. Stat. § 66.0401 and Wis. Admin. Code Chap. PSC 128, as amended, in the evaluation of such requests.
1.
No restriction shall be placed, either directly or in effect, on the installation or use of a wind energy system, unless the restriction satisfies one (1) of the following conditions:
a.
Serves to preserve or protect the public health or safety.
b.
Does not significantly increase the cost of the system or significantly decrease its efficiency.
c.
Allows for an alternative renewable system of comparable cost and efficiency.
(Ord. No. O1657, §§ 99—104, 6-17-2025)
All of the following temporary uses shall comply with the standards and procedures herein. Unless stated otherwise below, temporary uses are limited to ninety (90) days per calendar year. Temporary uses may be extended in duration through the conditional use process (See Section 10.10.32).
(1)
Garage or Estate Sale (Auction)
Any temporary display of used household goods for sale on a property customarily used as a residence that does not exceed four (4) days in duration and that occurs no more than four (4) times in one (1) calendar year. Such sales are also commonly referred to as rummage sales or yard sales.
Regulations
(a)
The person or persons conducting the Garage or Estate Sale shall reside on the lot where the sale is conducted. Permits are not required for Garage or Estate Sales.
(b)
Sales shall occur only during daylight hours.
(c)
Garage or Estate Sales shall not exceed four (4) days in duration.
(d)
Garage or Estate Sales shall not be held more than four (4) times in any twelve (12) month period and shall not be held more than two (2) times in any thirty (30) day period.
(e)
Signs shall comply with the regulations of Chapter 22.
(2)
Farmer's Market
Farmer's Markets include the temporary or occasional outdoor retail sales of farm produce, plants and flowers, bakery goods, and/or crafts from vehicles or temporary stands located within a parking lot.
Regulations
(a)
The parking lot shall have direct vehicular access to a collector or higher classification street.
(b)
Farmer's Market land uses are limited to the operating hours of 7 a.m. to 10 p.m.
(3)
Temporary Farm Product Sales/Roadside Stand
This land use includes the temporary outdoor display and sales of farm products, typically from a roadside stand.
Regulations
(a)
Display shall not obstruct pedestrian or vehicular circulation, including vehicular sight distances.
(b)
Sales and display activities shall be limited to daylight hours.
(c)
Minimum required parking: Two (2) spaces per vendor.
(4)
Temporary Moving Container (Residential)
Portable storage containers designed and used primarily for the temporary storage of household goods and other such materials for use on a limited basis on residential property.
Regulations
(a)
The container shall not exceed outside dimensions of twenty (20) feet in length, eight (8) feet in width, and nine (9) feet in height.
(b)
The container shall be permitted on the property for up to ninety (90) days associated with each change of occupancy as defined by a recorded change in property ownership or valid lease.
(c)
The container cannot encroach on a public sidewalk, bike path, street, right-of-way, or neighboring property.
(d)
The container must be placed on asphalt, concrete, or a similar hard-paved surface.
(5)
Temporary On-Site Construction Storage, Contractor's Project Office, and On-Site Real Estate Sales Office
Includes any structure or outdoor storage area designed for the on-site storage of construction equipment and/or materials for an active construction project, a structure containing an on-site construction management office for an active construction project, or a building which serves as an on-site sales office for a development project.
Regulations
(a)
The land use shall be removed upon the expiration of the building permit associated with the active construction project. Projects requiring the land use to be in place beyond the expiration date of the building permit shall require a conditional use permit. Temporary Real Estate Offices shall be removed or converted to a permitted land use within ten (10) days of the completion of sales activity.
(b)
Projects requiring the construction storage or contractor's project office structure to be in place for more than three hundred sixty-five (365) days shall require a conditional use permit. Temporary On-Site Real Estate Sales Office uses that exceed ninety (90) days per calendar year shall require a conditional use permit.
(c)
The storage area shall be limited to a maximum area not exceeding ten (10) percent of the property's gross site area.
(6)
Temporary Outdoor Assembly
Includes any organized outdoor assembly such as outdoor weddings, wedding receptions, or tent meetings. Refer to Sec. 7.17 of the City of Middleton Municipal Code for Special Event Permit requirements.
Regulations
(a)
Temporary Outdoor Assembly uses that exceed three (3) days per calendar year shall require a conditional use permit.
(b)
Activities shall not obstruct pedestrian or vehicular circulation, including vehicular sight distances.
(c)
If subject property is located adjacent to a residentially zoned property, activities shall be limited to daylight hours.
(7)
Temporary Outdoor Sales
Includes the display of any items outside the confines of a building, which is not a permitted or conditional use or a special event otherwise regulated by the Municipal Code. Examples of this land use include, but are not limited to, sidewalk sales, seasonal garden shops, tent sales, Christmas tree sales, and fireworks sales (also see Chapter 7.09 of the City of Middleton Municipal Code). Food and/or beverage trucks, carts, stands, or trailers are regulated in Chapter 7.01 of the City of Middleton Municipal Code.
Regulations
(a)
Temporary Outdoor Sales uses that exceed ninety (90) days per calendar year shall require a conditional use permit.
(b)
Display shall not obstruct pedestrian or vehicular circulation, including vehicular sight distances.
(c)
If subject property is located adjacent to a residential zoning district, sales and display activities shall be limited to daylight hours.
(d)
The user shall provide a layout of the activities to the Zoning Administrator, for approval prior to any event or sales activity.
(e)
Minimum required parking: None.
(8)
Temporary Outdoor Storage Container (Nonresidential)
Enclosed, lockable storage containers such as shipping containers, semi-trailers, storage pods, or other fully enclosed trailers for use on a limited basis on a nonresidential property. Other forms of temporary outdoor storage containers are prohibited.
Regulations
(a)
The container must be placed on asphalt, concrete, or a similar hard-paved surface.
(b)
The container shall be permitted on the property for up to thirty (30) days per calendar year. Containers in place for more than thirty (30) days per calendar year shall be regulated as Outdoor Storage and Wholesaling under Section 10.03.16(2) or Incidental Outdoor Storage under Section 10.03.28(14).
(9)
Temporary Refuse Container
Includes any receptacle or container used for the temporary disposal of refuse on-site usually in the form of a dumpster or other similarly large metal container associated with a construction, remodeling, moving, or other similar project on-site.
Regulations
(a)
The container shall not exceed outside dimensions of twenty-five (25) feet in length, eight (8) feet in width, and eight (8) feet in height or forty (40) yards of capacity.
(b)
The container shall be permitted on the property for up to thirty (30) consecutive days.
(c)
The container cannot encroach on a public sidewalk, bike path, street, right-of-way, or neighboring property.
(d)
The container must be placed on asphalt, concrete, or a similar hard-paved surface.
(10)
Temporary Relocatable Building
Includes any manufactured building which serves as a temporary building for less than six (6) months.
Regulations
(a)
Facilities serving for more than six (6) months shall be considered conditional uses and are subject to the general standards and procedures presented in Section 10.10.32.
(b)
The structure shall be limited to a maximum area not exceeding ten (10) percent of the property's gross site area.
(11)
Temporary Shelter Structure
These shelters are typically supported by poles, have a fabric or plastic roof and/or sides, and are commonly used for short term temporary storage of vehicles and other personal property. This does not include camping tents or permanent Residential Accessory Structures. Temporary Shelter Structures are prohibited.
(12)
Temporary Vehicle Sales
Includes the sale of personal vehicles and equipment on trailers such as ATVs, snowmobiles, motorcycles, horse trailers, campers, etc.
Regulations
(a)
No more than one (1) vehicle or trailer shall be for sale on any property at any given time for up to a maximum of thirty (30) days per calendar year.
(b)
Vehicles or trailers for sale must be licensed.
(c)
Vehicles or trailers for sale must be owned by one (1) of the following:
1.
The property owner or lessee.
2.
An employee of the property owner or lessee, only during the hours in which the employee is working.
(d)
Vehicles or trailers for sale must be parked in a legal parking space or a residential driveway. Vehicles or trailers for sale shall not be parked on a lawn or other landscaped area.
LAND USE REGULATIONS
The purpose of this Article is to indicate which land uses may locate in each zoning district and under what requirements; and which land uses may not locate therein. Certain land uses may locate in a given district as a matter of right upon compliance with special regulations for such a land use. A further distinction is made for land uses which may locate in a given district only upon obtaining a conditional use or temporary use permit.
The allowable land uses for each zoning district are established in Article II of this Chapter. Detailed descriptions and regulations for uses are found in Sections 10.03.06 through 10.03.30. No land use is permitted or permissible on a property unless it can be located on it or implemented in full compliance with all of the applicable standards and regulations of this Chapter or unless an appropriate variance has been granted pursuant to Section 10.10.51. For land uses not specifically listed, the Zoning Administrator shall make an interpretation to identify a comparable use or determine if an amendment to this Chapter is necessary.
(1)
Principal Land Uses Permitted by Right
Principal land uses listed as permitted by right (designated by the letter "P" in Section 10.03.05) are permitted per the general land use requirements of this Article; per the density, intensity, and bulk regulations of the specific zoning district in which they are located; per any additional requirements imposed by applicable overlay districts; per all other applicable requirements of this Chapter; and per any and all other applicable City, county, state, and federal regulations.
(2)
Principal Land Uses Permitted as Conditional Uses
Principal land uses allowed only with a conditional use permit (designated by the letter "C" in Section 10.03.05) may be permitted subject to all the requirements applicable to uses permitted by right as listed in Subsection (1), above, plus any additional requirements applicable to that particular land use imposed as part of the conditional use permit process established in Section 10.10.32. Except for uses approved under a general development plan and specific implementation plan in a planned unit development (see Section 10.10.45), all uses requiring a conditional use permit shall comply with the procedural requirements of Section 10.10.32.
(3)
Accessory Land Uses
Accessory land uses are allowed subject to all the requirements and exceptions applicable to principal land uses permitted by right as listed in Subsection (1), above. Accessory land uses allowed only with a conditional use permit are subject to all the requirements and exceptions applicable to principal land uses requiring a conditional use permit as listed in Subsection (2), above. Accessory land uses shall also comply with the following listed regulations.
(a)
No accessory structure or use shall be constructed on any lot prior to the establishment of an allowable principal use, unless otherwise stated in this Chapter.
(b)
Accessory land uses and structures shall not be located within the required front or street yard setback. This applies to corner, single-frontage, and double-frontage lots.
(c)
In no instance shall an accessory structure, unfinished cellar, unfinished basement, tent, or recreational trailer be used as a residence.
(4)
Temporary Land Uses
Temporary land uses permitted by right (designated by the letter "P" in the Table of Land Uses in Section 10.03.05) are permitted on a temporary basis subject to permitting requirements of Section 10.10.30 of this Chapter. Temporary land uses permitted only with a conditional use permit (designated by the letter "C" in the Table of Land Uses) may be permitted subject to temporary use and conditional use permitting requirements of Sections 10.10.32.
All uses of land initiated within the jurisdiction of this Chapter on, or following, the effective date of this Chapter shall comply with all of the provisions of this Chapter.
(1)
Land Use Regulations and Requirements
All uses of land shall comply with all the regulations and requirements of this Chapter. Such regulations directly relate to the protection of the health, safety, and general welfare of the residents of the City of Middleton.
(2)
Density, Intensity, and Bulk Regulations and Requirements
All development and use of land shall comply with all the applicable requirements of Articles II and IV of this Chapter.
(3)
Overlay Zoning District Requirements
All land use and/or development of land shall comply with all the regulations and requirements of any applicable Overlay Zoning District (see Article II).
(4)
Performance Standards
All development of land shall comply with all applicable requirements established in Article VI.
(5)
Exterior Building Design Standards
All new, remodeled, and expanded residential and nonresidential development shall comply with all applicable building design guidelines as required in Article VII of this Chapter.
(6)
Landscape Regulations
All development of land shall comply with all the regulations and requirements of Article VIII pertaining to the provision of landscaping and bufferyards. Such requirements address issues such as minimum required landscaping of developed land and minimum required provision of bufferyards between adjoining zoning districts which are directly related to the effective bulk of a structure.
(7)
Signage Regulations
All land use and/or development of land shall comply with all requirements of Chapter 22 of the City Municipal Code, pertaining to the type and amount of signage permitted on property. Such requirements address issues such as the maximum area of permitted signage and the number and types of permitted signage.
(8)
Number of Buildings Per Lot
In all zoning districts a maximum of one (1) principal building shall be permitted on any one (1) lot, with the exception of the following:
(a)
Group or Large Developments (Section 10.06.02).
(b)
Planned Developments (Section 10.02.70).
(c)
Manufactured Home Parks (Section 10.03.06).
(d)
Temporary buildings (Section 10.03.30).
(9)
Mixing Residential and Nonresidential Uses in a Building
With the exception of mixed use buildings described under Section 10.03.08, and home occupation land uses, no building containing a nonresidential land use shall contain a residential land use.
(10)
Number of Land Uses per Building
Any number of land uses that are permitted by right can be combined within a building, per the limitations of those individual uses. Any number of land uses that require a conditional use permit can be combined within a building, per the limitations of those individual uses and with each approved through the conditional use process (Section 10.10.32).
(11)
Accessory Uses
Accessory uses may be allowed where they comply with the following conditions and requirements:
(a)
Separation from Principal Structures
Detached accessory buildings shall be separated as regulated by the Uniform Dwelling Code. The "separation" distance between a dwelling unit and accessory structure is determined by measuring the perpendicular distance from wall to wall of the structures. Minor attachments such as handrails, latticework, trellises, or pergolas may be located in the required separation area and do not render the structures attached for setback purposes. All accessory buildings and structures on a lot are subject to the maximum impervious surface ratio requirements for each zoning district (Article II).
(b)
Conversion of Accessory Structures to Dwellings
The conversion of any accessory structure into a dwelling so as to accommodate an increased number of dwelling units or families, shall be permitted only within a district in which a new building for similar occupancy would be permitted under this Chapter. The resulting occupancy will comply with the requirements governing new construction in such district, including minimum lot size, lot area per dwelling unit, building of lot coverage, dimensions of yards and other open spaces, and off-street parking.
(c)
Accessory Structures without Principal Structure
1.
No accessory structure shall be erected or constructed prior to the erection or construction of the principal structure, paved areas, or below grade improvements.
2.
When an accessory structure becomes the only structure on a lot as the result of demolition of the principal building, the accessory structure shall be demolished within eighteen (18) months of the demolition of the principal building. The Zoning Administrator shall have the ability to extend this period by an additional eighteen (18) months if the property owner has a concept plan, as approved by the Zoning Administrator, to build a new principal building or otherwise redevelop the site in a manner that uses the accessory structure.
(12)
Group and Large Development Requirements
A Group or Large Development may include any of the land uses in this Chapter that is permitted by right or by conditional use permit in the subject zoning district. All uses and/or development of land within a Group or Large Development shall comply with all requirements of Section 10.06.02.
(13)
Planned Development Requirements
All uses and/or development of land within a planned development shall comply with all requirements of Section 10.02.70 and 10.10.45.
(14)
Nonconforming Uses, Lots, Structures, and Site Requirements
(a)
Land uses not in conformance with the requirements of the applicable zoning district shall be subject to the special limitations and exceptions as established in Article V.
(b)
Land uses located on substandard lots or on nonconforming lots, nonconforming sites, or in nonconforming structures shall comply with all the regulations and requirements of Article V.
(15)
Site Plan Review Required
All development involving physical modifications to a site including but not limited to new developments, building additions, alterations, or removal; and additions to paving are subject to site plan review and approval in accordance with Section 10.10.43 of this Chapter, except for single-family and two-family dwelling units on individual lots in any zoning district which need only comply with Section 10.10.43(3).
(16)
Procedural Regulations and Requirements
All land use and/or development of land shall comply with all requirements of Article X, pertaining to the procedures necessary to secure review and approval of land use and/or development. Such regulations and restrictions address both procedural and technical requirements.
(17)
Demolition of a Principal Structure
Where a principal structure has been removed, all driveways, paved areas, and below grade improvements on the lot shall be removed. All public utilities shall be abandoned at their connection with the main unless written exception is obtained from the City Engineer.
(Ord. No. O1657, §§ 74, 75, 6-17-2025)
The land use categories employed by this Chapter are defined in Sections 10.03.06 through 10.03.30. Land use categories which are not listed in this Chapter are not necessarily excluded from locating within any given zoning district. Section 10.10.50 empowers the Zoning Administrator to make interpretations on matters regarding specific land use proposals which are not addressed by this Chapter.
The Table of Land Uses on the following pages is provided as a convenience for the City and the general public. Where there are conflicts between the text of this Chapter and the Table of Land Uses, the text shall prevail.
(Ord. No. O1657, § 76, 6-17-2025)
(1)
Apartment
This dwelling unit type consists of a single structure with three (3) or more individual attached dwelling units which take access from a shared entrance or hallway.
Regulations
(a)
In the case where any dwelling unit is under separate ownership, evidence that covenants specifying respective obligations with regard to any common structures, such as the shared wall, roof, and other inseparable improvements, is required.
(b)
All development shall comply with the requirements of Chapter 11, 19, and 23 of the City Middleton Municipal Code.
(c)
See Section 10.07.20 for multi-family design standards and Section 10.06.41 for on-site recreation space requirements.
(d)
Group Developments shall meet the standards of Section 10.06.02.
(e)
Minimum and maximum required parking: See Section 10.06.06.
(f)
The following figure is intended to provide a graphic depiction of the setback and dimensional requirements for Apartment land uses. Specific requirements for Apartments can be found in Article II under the density, intensity, and bulk requirements for each residential zoning district.
(2)
Boarding House Living Arrangement
A residential land use where occupancy of a dwelling unit is shared by up to eight (8) unrelated adult individuals. Boarding House Living Arrangements are a social configuration of occupants and must accompany one (1) or more of the other Residential Land Use (Section 10.03.06) physical configurations.
(a)
Boarding House Living Arrangements are distinct from Individual Family Living Arrangements (occupied by no more than one-family), which are regulated as separate land use types under Sections 10.03.06(5).
(b)
Facility shall be surrounded by a bufferyard with a minimum opacity of 0.60 along all property borders abutting residentially zoned property.
(c)
Boarding House Living Arrangements require a license and an annual on-site inspection to confirm full compliance with all zoning and building code requirements.
(d)
Outdoor storage shall be restricted to rear yards.
(e)
Minimum and maximum required parking: See Section 10.06.06.
(3)
Duplex
This dwelling unit type consists of two (2) separate Single-Family Dwelling Units, each having a private individual exterior entrance or private interior entrance from a shared foyer, and no shared internal access other than entry foyers and halls. Similar to Twin Houses, Duplexes are attached side-by-side units, each with a ground floor and roof. Unlike Twin Houses, the two (2) dwelling units in a Duplex are located on one (1) lot.
Regulations
(a)
In the case where any dwelling unit is under separate ownership, recorded deed restrictions or covenants specifying respective obligations with regard to any common structures, such as the shared wall, roof, and other inseparable improvements, is required.
(b)
The common wall between the units shall be a one (1) hour fire wall extending from the basement floor to flush against the underside of the roof.
(c)
This dwelling unit type may not be split into additional residences.
(d)
Each duplex shall provide a separate public water lateral, sanitary sewer lateral, and electric utility service to each of the two (2) dwelling units in the structure.
(e)
All development shall comply with the requirements of Chapter 11, 19, and 23 of the City Middleton Municipal Code.
(f)
See Section 10.07.10 for design standards for two-family uses and Section 10.06.43 for utility access standards for residential uses.
(g)
Minimum and maximum required parking: See Section 10.06.06.
(h)
The following figure is intended to provide a graphic depiction of the setback and dimensional requirements for Duplex land uses. Specific requirements for Duplexes can be found in Article II under the density, intensity, and bulk requirements for each residential zoning district.
(4)
Individual Family Living Arrangement
A residential land use in which occupancy of a dwelling unit is no more than one-family or functional family. Individual Family Living Arrangements are a social configuration of occupants and must accompany one (1) or more of the other Residential Land Use (Section 10.03.06) physical configurations listed throughout this Section.
(a)
Individual Family Living Arrangements are distinct from Boarding House Living Arrangements, which are regulated as separate land use types under Sections 10.03.06(2).
(b)
Individual Family Living Arrangements must accompany one (1) or more of the other Residential Land Use (Section 10.03.06) physical configurations listed throughout this Section.
(c)
Minimum and maximum required parking: See Section 10.06.06.
Figure 10.03.06c: Number of Unrelated Adults Permitted by Land Use
(5)
Manufactured Home
A structure that is designed to be used as a dwelling with or without a permanent foundation and that is certified by the federal department of housing and urban development as complying with the standards established under 42 USC 5401 to 5425. See Section 10.03.06.
Regulations
(a)
No Manufactured Home may be split into more than two residences.
(b)
Within thirty (30) days of occupancy, the owner shall remove the axle and install skirting.
(c)
All development shall comply with the requirements of Chapter 11, 19, and 23 of the City of Middleton Municipal Code.
(d)
The building design standards of Section 10.07.10 shall not apply.
(e)
Minimum and maximum required parking: See Section 10.06.06.
(f)
The following figure is intended to provide a graphic depiction of the setback and dimensional requirements for Manufactured Home land uses. Specific requirements for Manufactured Homes can be found in Article II under the density, intensity, and bulk requirements for each residential zoning district.
Figure 10.03.06d: Manufactured Home
(6)
Manufactured Home Park
This land use is a form of residential development which is exclusively reserved for individually sold or rented building pads located on a single parcel containing Manufactured Homes. Each Manufactured Home must meet the requirements listed under Section 10.03.06(6), above.
Regulations
(a)
Development shall be located so as to blend with adjacent residentially zoned areas to the greatest extent possible.
(b)
No access shall be permitted to local residential streets, except to the internal roadways and streets.
(c)
All development shall comply with the requirements of Chapter 11, 19, and 23 of the City Middleton Municipal Code.
(7)
Manufactured Home Subdivision
This land use is a form of residential development which is exclusively reserved for individually sold lots containing Manufactured Homes. Each lot and Manufactured Home must meet the requirements listed under Section 10.03.06(6), above.
Regulations
(a)
Development shall be located so as to blend with adjacent residentially zoned areas to the greatest extent possible.
(b)
No access shall be permitted to local residential streets, except to the internal roadways and streets.
(c)
All development shall comply with the requirements of Chapter 11, 19, and 23 of the City Middleton Municipal Code.
(d)
Specific requirements for Manufactured Home Subdivisions can be found in Article II under the density, intensity, and bulk requirements for each residential zoning district.
(8)
Multiplex
This dwelling unit type consists of three or more individual attached dwelling units which have private, individual exterior entrances and are located on one lot.
Regulations
(a)
In the case where any dwelling unit is under separate ownership, evidence that covenants specifying respective obligations with regard to any common structures, such as the shared wall, roof, and other inseparable improvements, is required.
(b)
All development shall comply with the requirements of Chapter 11, 19, and 23 of the City Middleton Municipal Code.
(c)
Group Developments shall meet the standards of Section 10.06.02.
(d)
See Section 10.07.20 for multi-family design standards, Section 10.06.41 for on-site recreation space requirements, and Section 10.06.43 for utility access standards for residential uses.
(e)
Minimum and maximum required parking: See Section 10.06.06.
(f)
The following figure is intended to provide a graphic depiction of the setback and dimensional requirements for Multiplex land uses. Specific requirements for Multiplexes can be found in Article II under the density, intensity, and bulk requirements for each residential zoning district.
(9)
Single-Family Dwelling Unit
This dwelling unit type consists of a fully detached Single-Family residence which is located on an individual lot. Single-Family dwelling units are designed for one-family and have no roof, wall, or floor in common with any other dwelling unit. A single-family dwelling that contains an in-family suite or accessory dwelling unit is still considered a single-family dwelling.
Regulations
(a)
The dwelling unit shall be a site-built structure built in compliance with the State of Wisconsin Uniform Dwelling Code (UDC), or may be a modular home as permitted by the UDC or that has received a Federal Manufactured Housing Certificate label.
(b)
The dwelling must be attached to a finished, permanent foundation, such as a poured concrete slab or basement meeting UDC requirements. All development shall comply with the requirements of Chapter 11, 19, and 23 of the City of Middleton Municipal Code.
(c)
See Section 10.07.10 for design standards for single-family dwelling units.
(d)
Minimum and maximum required parking: See Section 10.06.06.
(e)
The following figure is intended to provide a graphic depiction of the setback and dimensional requirements for single-family dwelling units. Specific requirements for single-family dwelling units can be found in Article II under the density, intensity, and bulk requirements for each residential zoning district.
Figure 10.03.06f: Single-Family Dwelling Unit
(10)
Townhouse
This dwelling unit type consists of attached structures, each having a private, individual access. This dwelling unit type may be located on its own lot or a shared lot. Each dwelling unit shares at least one (1) common wall with an adjacent dwelling unit.
Regulations
(a)
In the case where any dwelling unit is under separate ownership, recorded covenants specifying respective obligations with regard to any common structures, such as the shared wall, roof, and other inseparable improvements, are required.
(b)
Each townhouse shall provide a separate public water lateral, sanitary sewer lateral, and electric utility service to each of the dwelling units in the structure.
(c)
The common wall between the units shall be a one-hour fire wall extending from the basement floor to flush against the underside of the roof. Eaves, patios, and decks may have a zero setback from any shared lot line.
(d)
Group Developments shall meet the standards of Section 10.06.02.
(e)
All development shall comply with the requirements of Chapter 11, 19, and 23 of the City Middleton Municipal Code.
(f)
See Section 10.07.20 for multi-family design standards, Section 10.06.41 for on-site recreation space requirements and Section 10.06.43 for utility access standards for residential uses.
(g)
Minimum and maximum required parking: See Section 10.06.06.
(h)
The following figure is intended to provide a graphic depiction of the setback and dimensional requirements for Townhouse land uses. Specific requirements for Townhouses can be found in Article II under the density, intensity, and bulk requirements for each residential zoning district.
(11)
Twin House
This dwelling unit type consists of two (2) separate Single Family Dwelling Units, each having a private individual exterior entrance or private interior entrance from a shared foyer, and no shared internal access other than entry foyers and halls. Similar to Duplexes, Twin Houses are attached side-by-side units, each with a ground floor and roof. Unlike Duplexes, each dwelling unit in a Twin House is located on a separate lot (also known as a zero-lot line duplex).
Regulations
(a)
Recorded deed restrictions or covenants specifying respective obligations with regard to any common structures, such as the shared wall, roof, utility and other inseparable improvements, are required.
(b)
The common wall between the units shall be a one-hour fire wall extending from the basement floor to flush against the underside of the roof. Eaves, patios, and decks may have a zero setback from any shared lot line.
(c)
This dwelling unit type may not be split into additional residences.
(d)
Each twin house shall provide a separate public water lateral, sanitary sewer lateral, and electric utility service to each of the two dwelling units in the structure. See Section 10.06.43 for utility access standards for residential uses.
(e)
All development shall comply with the requirements of Chapter 11, 19, and 23 of the City Middleton Municipal Code.
(f)
See Section 10.07.10 for design standards for two-family uses.
(g)
Minimum and maximum required parking: See Section 10.06.06.
(h)
The following figure is intended to provide a graphic depiction of the setback and dimensional requirements for Twin House land uses. Specific requirements Twin Houses can be found in Article II under the density, intensity, and bulk requirements for each residential zoning district.
(12)
Two-Flat
This dwelling unit type consists of a single structure with two separate Single Family Dwelling Units, each having a private individual exterior entrance or private interior entrance from a shared foyer, and no shared internal access other than entry foyers and halls. Two-Flats are attached units within a single structure with one unit above the other.
Regulations
(a)
In the case where any dwelling unit is under separate ownership, evidence that covenants specifying respective obligations with regard to any common structures, such as the shared wall, roof, and other inseparable improvements, is required.
(b)
This dwelling unit type may not be split into more than two residences and remain a two-flat. A building with three or more residences is considered a multi-plex or apartment land use.
(c)
All development shall comply with the requirements of Chapter 11, 19, and 23 of the City Middleton Municipal Code.
(d)
See Section 10.07.10 for design standards for two-family uses and Section 10.06.43 for utility access standards for residential uses.
(e)
Minimum and maximum required parking: See Section 10.06.06.
(f)
The following figure is intended to provide a graphic depiction of the setback and dimensional requirements for Two-Flat land uses. Specific requirements for Two-Flats can be found in Article II under the density, intensity, and bulk requirements for each residential zoning district.
(Ord. No. O1657, §§ 77—87, 6-17-2025)
(1)
Live/Work Building
A multi-unit building in which each dwelling unit is occupied by the business operator of a commercial use (such as a shop, office, studio, or other work space) in the same structure. Both uses shall be occupied by the same resident/business operator. The commercial use may be connected to the residential use.
(a)
Each unit in the live/work building shall be the primary dwelling of the occupant.
(b)
The commercial use is subject to the regulations of the applicable land use category in Section 10.03.10. The commercial component of the live/work building is limited to the following land uses:
1.
Office.
2.
Personal or Professional Service.
3.
Indoor Sales or Service.
4.
Artisan Production Shop.
5.
Indoor Maintenance Service (Nonresidential).
(c)
Employees who are not residents of the unit are permitted.
(d)
Both uses are subject to the nonresidential density, intensity, and bulk requirements of Article II.
(e)
Minimum and maximum required parking: See Section 10.06.06.
(g)
Live/Work Buildings shall comply with the design standards for commercial and mixed-use land uses. See Section 10.07.30. See Section 10.06.41 for on-site recreation space requirements.
(2)
Mixed-Use Building
A building containing a mix of principal nonresidential land uses and principal residential land uses.
Regulations
(a)
This land use shall comply with all of the bulk and density requirements of the zoning district.
(b)
Land Use Minimums
1.
The principal indoor nonresidential use of any mixed-use building located at a corner of two (2) or more streets shall consist of a minimum of thirty-three (33) percent of that principal structure's total ground level gross floor area. (See Section 10.03.10 for Commercial and Section 10.03.12 for Institutional.) The required nonresidential use floor area shall be calculated based on the total ground floor area of the principal structure. If the ground floor area is ten thousand (10,000) square feet or greater, the minimum requirement for nonresidential use space shall be three thousand three hundred (3,300) square feet.
a.
Up to twenty-five (25) percent of any lobby or entryway spaces intended for use by both residential and nonresidential land uses shall count toward the minimum amount of ground floor nonresidential use floor area required in the calculation above.
(c)
Minimum and maximum required parking: See Section 10.06.06.
(d)
Mixed-Use Buildings shall comply with the design standards for commercial and mixed-use land uses. See Section 10.07.30. See Section 10.06.41 for on-site recreation space requirements.
(Ord. No. O1657, §§ 88, 89, 6-17-2025)
(1)
Adult-Oriented Entertainment Business
Adult-oriented entertainment businesses include an adult bath house, adult body painting studio, adult bookstore, adult cabaret, adult entertainment, adult mini-motion picture theater, adult modeling studio, adult motel, adult motion picture theater, adult motion picture theater (outdoor), adult novelty shop, and adult oriented entertainment as defined in Section 7.13 of the City of Middleton Municipal Code. A business defined as an adult-oriented entertainment business shall be located in accordance with the provisions in Section 7.13(1)(h).
(2)
Artisan Production Shop
A building or portion thereof used by ten (10) or fewer artists or artisans for the creation, preparation, display and sale of unique (rather than mass-produced) individually crafted items including artwork, jewelry, custom furniture, woodwork, sculpture, glass, metal, pottery, leathercraft, hand-woven articles, and related items, as either a principal use or accessory use.
Regulations
(a)
Minimum and maximum required parking: See Section 10.06.06.
(3)
Bed and Breakfast
Bed and Breakfasts are places of lodging that provide rooms for rent in the owner's personal residence, are occupied by the owner at the time of rental, and where the only meal served to guests is breakfast.
Regulations
(a)
Facility shall be surrounded by a bufferyard with a minimum opacity of 0.40 along all property borders abutting residentially zoned property.
(b)
The dwelling unit in which the Bed and Breakfast takes place shall be the principal residence of the operator/owner and said operator/owner shall live on the premises when the Bed and Breakfast operation is active.
(c)
The facility shall comply with the requirements of Wis. Stat. § 254.61 and Wis. Admin. Code Chap. DHS 197.
(d)
Minimum and maximum required parking: See Section 10.06.06.
(4)
Campground
Campgrounds include any facilities designed for overnight accommodation of persons in tents, travel trailers, or other mobile or portable shelters or recreational vehicles, including recreational vehicle overnight stays in parking lots and other similar locations not in campgrounds.
Regulations
(a)
Campgrounds shall be surrounded by a bufferyard with a minimum opacity of 0.60 along all property borders abutting residentially zoned property.
(b)
Shall comply with the requirements of the Health Code of Dane County and applicable state regulations.
(c)
Minimum and maximum required parking: See Section 10.06.06.
(5)
Commercial Animal Boarding
Facilities where short-term and/or long-term animal boarding is provided, including commercial kennels, commercial stables, and animal shelters. Exercise yards, fields, training areas, and trails associated with such land uses are considered accessory and do not require separate consideration.
Regulations
(a)
Outdoor animal containment areas shall be surrounded by a bufferyard with a minimum opacity of 0.80 along sides abutting residentially zoned property.
(b)
Each animal shall be provided with an indoor containment area.
(c)
Events such as shows, exhibitions, and contests shall only be permitted when a temporary use permit has been secured.
(d)
Minimum and maximum required parking: See Section 10.06.06.
(6)
Commercial Animal Daycare
Facilities where short-term pet daycare is provided. Exercise yards, fields, training areas, and trails associated with such land uses are considered accessory and do not require separate consideration.
(a)
Outdoor animal containment areas shall be surrounded by a bufferyard with a minimum opacity of 0.80 along sides abutting residentially zoned property.
(b)
Each animal shall be provided with an indoor containment area.
(c)
Events such as shows, exhibitions, and contests shall only be permitted when a temporary use permit has been secured.
(d)
Minimum and maximum required parking: See Section 10.06.06.
(7)
Commercial Indoor Lodging
Facilities where overnight housing in individual rooms or suites of rooms is provided, with each room or suite having a private bathroom. Such land uses may provide in-room or in-suite kitchens and may also provide indoor recreational facilities. Restaurant, lounge, fitness centers, and other on-site facilities available to non-lodgers are considered principal uses and therefore require review as a separate land use.
Regulations
(a)
Customer entrances shall be located fifty (50) feet from residentially zoned property.
(b)
Facility shall be surrounded by a bufferyard with a minimum opacity of 0.60 along all property borders abutting residentially zoned property.
(c)
Minimum and maximum required parking: See Section 10.06.06.
(8)
Commercial Kitchen
A building or portion thereof used for the preparation of food that can be rented or used as a classroom by different organizations, businesses, or individuals. Products produced on site may be sold off site.
Regulations
(a)
Shall comply with the requirements of the Health Code of Dane County and applicable state regulations.
(b)
Minimum and maximum required parking: See Section 10.06.06.
(9)
Drive-Through and In-Vehicle Sales or Service
Land uses where sales and/or services are conducted to persons in vehicles, or to vehicles which may or may not be occupied at the time of such activity (except vehicle repair and maintenance services). Such land uses often have traffic volumes which exhibit their highest levels concurrent with peak traffic flows on adjacent roads. Examples of such land uses include, but are not limited to, drive-in facilities, drive-through facilities, fuel stations, and car washes.
Regulations
(a)
Clearly marked pedestrian crosswalks shall be provided for each walk-in customer access to the facility.
(b)
Drive-through windows shall not be located between the principal building and the street right-of-way.
(c)
The drive-through facility shall be designed so as to not impede or impair vehicular and pedestrian traffic movement, or exacerbate the potential for pedestrian/vehicular conflicts.
(d)
In no instance shall a drive-through facility be permitted to operate which endangers the public safety, even if such land use has been permitted under the provisions of this Section.
(e)
The setback of the outer edge of any overhead canopy or similar structure shall be a minimum of ten (10) feet from all street rights-of-way lines, or the principal building setback, whichever is greater; a minimum of twenty (20) feet from all residentially zoned property lines; and shall be a minimum of five (5) feet from all other property lines. The total height of any overhead canopy or similar structure shall not exceed sixteen (16) feet per the measurement of roof height.
(f)
Any fuel pumps or pump islands shall be a minimum of seventy-five (75) feet from any street or abutting lot line.
(g)
Facility shall provide a bufferyard with a minimum opacity of 0.60 along all property borders abutting residentially zoned property.
(h)
Interior curbs shall be used to separate driving areas from exterior fixtures such as fuel pumps, vacuums, menu boards, canopy supports, and landscaped islands not part of an approved stormwater management system. Said curbs shall be six (6) inches high.
(i)
Minimum stacking lane length for drive-through facilities shall be as follows:
1.
Automatic automobile wash: One hundred (100) feet in front of the car wash entrance and twenty-five (25) feet after the exit.
2.
Establishments selling food and/or drink: One hundred (100) feet in front of each order station, fifty-five (55) feet between the order station and the pick-up window, and twenty-five (25) feet after the pick-up window.
3.
All other uses: Fifty-five (55) feet in front of and twenty-five (25) feet after each service window.
(j)
Minimum Required Parking
Refer to the parking requirements of the other land use activities on the site, such as, but not limited to, Indoor Sales and Service land uses for a gas station/convenience store, or Office land uses for a bank.
(10)
Food and Beverage Counter Service and Walk-In Pickup
Land uses which serve food and/or beverages at a counter to customers who typically consume the products off-site. A maximum of twelve (12) seats may be provided to customers waiting for a food pickup plus customers consuming the products on-site. Examples of such land uses include ice cream parlors, bakeries, coffee shops, and primarily carry-out oriented restaurants.
Regulations
(a)
Shall comply with the requirements of the Health Code of Dane County and applicable state regulations.
(b)
All uses selling alcohol shall comply with Chapter 7 of the City of Middleton Municipal Code.
(c)
Customer entrances shall be located a minimum of fifty (50) feet from residentially zoned property.
(d)
Minimum and maximum required parking: See Section 10.06.06.
(11)
Group Daycare Center (nine (9) + Children)
Facilities which provide childcare services for nine (9) or more children. Such land uses may be operated in conjunction with another principal land use on the same environs, such as a place of worship, school, business, or civic organization. In such instances, group daycare centers are considered a separate principal use and require review as such. See Wis. Admin. Code DCF § 251.
Regulations
(a)
Group Daycare Centers shall not be located within a residential building.
(b)
Facility shall be surrounded by a bufferyard with a minimum opacity of 0.50 along all property borders abutting residentially zoned property.
(c)
Minimum and maximum required parking: See Section 10.06.06.
(12)
Indoor Maintenance Service (Nonresidential)
Facilities where maintenance and repair service is provided and all operations are located entirely within an enclosed building, including the repair of clocks, vacuum cleaners, and small appliances. This shall not include Vehicle Sales or Vehicle Service and Repair land uses.
Regulations
(a)
Minimum and maximum required parking: See Section 10.06.06.
(13)
Indoor Sales or Service
The sale and/or display of merchandise or equipment or non-personal or non-professional services, entirely within an enclosed building. Examples of such uses include, but are not limited to, general merchandise stores, grocery stores, butcher, sporting goods stores, antique stores, gift shops, laundromats, bakeries, copy and printing centers, and photo processing centers.
Regulations
(a)
Minimum and maximum required parking: See Section 10.06.06.
(14)
Indoor Shooting Ranges
Land use which provides an indoor shooting range service entirely within an enclosed building. Such activities often have the potential to be associated with nuisances related to amplified noise and lighting, safety and security, and late operating hours that extend significantly later than most other commercial land uses.
Regulations
(a)
The building and method of operation shall conform to all applicable State and Federal standards for environmental protection and occupational health and safety. The applicant shall identify all such standards and demonstrate how the building and operation will comply including identification of any related state or federal reporting, inspection and permitting requirements.
(b)
The design and construction of the shooting range shall completely confine all ammunition rounds within the building in a safe, controlled manner.
1.
Compliance shall be demonstrated by plans, certified by an architect or engineer licensed or certified by the State of Wisconsin with demonstrated experience in indoor shooting range design.
2.
Compliance with the standards and recommendations of the most current versions of the Range Design Criteria of the U.S. Department of Energy, Office of Health, Safety and Security or the National Rifle Association Range Source Book shall be prima facie evidence of satisfaction of this condition. Under no circumstance shall the applicant be relieved of the obligation to comply with any requirement otherwise imposed by state, federal or local law.
3.
The plans shall specify the type and caliber of ammunition the shooting range is designed to confine. No ammunition shall be used, stored, sold, or possessed within the indoor shooting range that exceeds the certified design and construction specification for the shooting range.
(c)
The applicant shall demonstrate that the operation shall not be a nuisance to neighboring property or other likely neighboring property uses including nuisances related to air quality and noise.
(d)
A security plan shall be established for the building securing the building from unauthorized entrants as well as security for any firearms stored on the premises. No firearms shall be stored on the premises unless they are stored in a gun safe or other locked storage facility or container.
(e)
The shooting range shall establish clear rules and procedures for the health, safety and order of the operation, its employees and patrons consistent with accepted industry practices which shall be conspicuously posted at the shooting range.
(f)
On-site supervision of the range shall be provided at all times by an adult who is an experienced shooting range operator. The shooting range operator shall be responsible for taking all reasonable actions to assure the conduct of employees and patrons and the conditions of health, safety and order of the shooting range comply with all related rules and procedures.
(g)
No person under the age of eighteen (18) shall be permitted within the shooting range unless accompanied by an adult at all times. This condition shall not apply to prohibit minors from participating in firearms safety classes supervised by a qualified adult instructor.
(h)
Unless preempted by state or federal law, the Plan Commission may establish additional conditions or requirements including reporting or inspection requirements if it determines such conditions or requirements are reasonably necessary to protect the public health safety and welfare. Consideration shall be given to the cost and burden of such additional requirements upon the operation and upon City resources compared to the additional public benefit to be achieved, industry practices and evidence of experiences with similar operations in other communities.
(i)
Minimum and maximum required parking: See Section 10.06.06.
(15)
Intensive Outdoor Activity
Land uses located on private or public property that require intensive lighting and generate regional traffic and noise beyond property lines. Intensive outdoor activity land uses may include, but are not limited to, amusement parks, water parks, fairgrounds, outdoor stadiums, go cart tracks, paint ball, racetracks, ski hills, drive-in theaters, and tournament-oriented athletic facilities.
Regulations
(a)
No Intensive Outdoor Activity shall take place before 7:00 am or after 10:00 pm except as explicitly authorized by the conditional use process.
(b)
A bufferyard with a minimum opacity of 1.0 shall be provided along all property abutting residentially zoned property and for any facility requiring night lighting.
(c)
Facilities serving a regional or community-wide function shall provide an off-street passenger loading area if the majority of the users will be children or seniors.
(d)
Any activity area other than parking shall be set back a minimum of one hundred (100) feet from the property line.
(e)
Minimum and maximum required parking: See Section 10.06.06. The Zoning Administrator may require a parking study to determine parking requirements.
(16)
Office
Indoor Offices where the primary function is the handling of information or administrative services. Office uses do not typically provide services directly to customers on a walk-in basis.
Regulations
(a)
Minimum and maximum required parking: See Section 10.06.06.
(17)
Outdoor Commercial Entertainment
Land uses which provide entertainment services partially or wholly outside of an enclosed building. Such activities often have the potential to be associated with nuisances related to noise, lighting, dust, trash, and late operating hours. Outdoor commercial entertainment land uses may include, but are not limited to outdoor eating and drinking areas, sand volleyball courts, outdoor assembly areas, and outdoor swimming pools associated with another principal land use. Note that high-attendance facilities oriented to non-resident users or attendees and intensively lit tournament oriented outdoor facilities are considered intensive outdoor activity land uses (see Section 10.03.10(16)). Also see active outdoor recreation (Section 10.03.12(1)).
Regulations
(a)
Customer entrances shall be located a minimum of fifty (50) feet from residentially zoned property.
(b)
Activity areas shall not be located closer than fifty (50) feet to a residentially zoned property.
(c)
Facility shall provide bufferyard with minimum opacity of 0.60 along all borders of the outdoor activity area abutting residentially zoned property.
(d)
Minimum and maximum required parking: See Section 10.06.06.
(18)
Outdoor Sales and Display
Land uses where the sale and display of merchandise or equipment is conducted outside of an enclosed building on more than a temporary basis. Examples include, but are not limited to, outdoor garden centers, outdoor recreation equipment sales, monument sales, flea markets, and manufactured and mobile housing sales. If the permanent Outdoor Sales and Display area is less than the equivalent of five (5) percent of the total gross square footage of the building and is secondary to an Indoor Sales or Service use, such use shall instead be considered Incidental Outdoor Sales and Display under Section 10.03.28(12). Outdoor Sales and Display on a temporary basis shall be regulated by Temporary Outdoor Sales under Section 10.03.30(7). Also see Vehicle Sales (Section 10.03.10(24).
Regulations
(a)
The outdoor display area shall be calculated as the area which would be enclosed by an imaginary line that would completely enclose all materials displayed outdoors in the smallest possible rectangle.
(b)
The facility shall be surrounded by a bufferyard with a minimum opacity of 0.60 along all borders of the display area abutting residentially zoned property.
(c)
The display of items shall not be permitted in required setback areas, landscape areas, or bufferyards, unless located in a parking lot.
(d)
Inoperable vehicles or equipment, or other items typically stored in a junkyard or salvage yard as defined under Section 10.03.22(4), shall not be displayed.
(e)
In no event shall the display of items reduce or inhibit the use or number of parking stalls provided on the property below the requirement established by Subsection (i), below. If the number of provided parking stalls on the property is already less than the requirement, such display area shall not further reduce the number of parking stalls already present.
(f)
Display areas shall be separated from any circulation area by a minimum of ten (10) feet. This separation shall be clearly delimited by a physical separation such as a greenway, curb, fence, or line of planters, or by a clearly marked paved area.
(g)
Signs, screening, enclosures, landscaping, or materials being displayed shall not interfere in any manner with either on-site or off-site traffic visibility, including potential vehicle/vehicle and vehicle/pedestrian conflicts. Signs, screening, enclosures, landscaping, or materials being displayed shall comply with requirements related to corner clearance, vision triangles, crosswalks, drive aisle width, parking stall dimensions, fire lanes, bike lanes, or similar requirements related to traffic and pedestrian safety.
(h)
Outdoor Sales and Display shall be permitted during the entire calendar year, however, if goods are removed from the display area all support fixtures used to display the goods shall be removed within ten (10) calendar days of the goods' removal.
(i)
Minimum and maximum required parking: See Section 10.06.06.
(19)
Outdoor Maintenance Service (Nonresidential)
Facilities where maintenance and repair service is provided and where all or any portion of the operation is located outside of an enclosed building. This shall not include Vehicle Sales or Vehicle Service and Repair land uses.
Regulations
(a)
All areas put to active use shall be completely enclosed by a minimum six (6) feet high, solid fence. Such enclosure shall be located a minimum of fifty (50) feet from any residentially zoned property and shall be screened from such property by a bufferyard with a minimum opacity of 0.60.
(b)
Outdoor storage of unlicensed or inoperable vehicles is prohibited outside fenced areas.
(c)
Minimum and maximum required parking: See Section 10.06.06.
(20)
Personal or Professional Service
Indoor service land uses where the primary function is the provision of services directly to an individual on a walk-in or on-appointment basis. Examples of such uses include establishments where customers make an appointment, such as professional services, insurance or financial services, realty offices, small scale by-appointment medical offices and clinics, veterinary clinics, barber shops, beauty shops, and related land uses including ancillary on site production of items used in the provision of such services, as defined by the Incidental Light Industrial accessory use (see Section 10.03.28(11)).
Regulations
(a)
Minimum and maximum required parking: See Section 10.06.06.
(21)
Physical Activity Studio
All land uses which provide a facility for training, instruction, and physical activity within an enclosed building. Such activities may have operating hours which extend significantly earlier or later than most other commercial land uses, and may employ amplified sound to set training tempo (see Section 10.06.31 for Noise Standards). Examples of such land uses include health or fitness centers, all forms of training studios (yoga, dance, art, martial arts, gymnastics, etc.), and music schools.
Regulations
(a)
No customer entrance of any kind shall be permitted within fifty (50) feet of a residentially zoned property.
(b)
Facility shall provide bufferyard with minimum opacity of 0.60 along all borders of the property abutting residentially zoned property if outdoor physical activity takes place (see Section 10.08.30).
(c)
Minimum and maximum required parking: See Section 10.06.06.
(22)
Restaurants, Taverns, and Indoor Commercial Entertainment
Land uses which provide restaurants, taverns, or entertainment services entirely within an enclosed building. Such activities have the potential to be associated with nuisances related to amplified music, noise, lighting, trash, and late operating hours that extend significantly later than most other commercial land uses. Examples of such land uses include, but are not limited to, restaurants, brewpub, taverns, theaters, bowling alleys, arcades, roller rinks, and pool halls. Also see Section 10.03.10(18) for Outdoor Commercial Entertainment and Section 10.03.10(1) for Adult Entertainment.
Regulations
(a)
Shall comply with the requirements of the Health Code of Dane County and applicable state regulations.
(b)
All uses selling alcohol shall comply with Chapter 7 of the City of Middleton Municipal Code.
(c)
Customer entrances shall be located a minimum of fifty (50) feet from residentially zoned property.
(d)
Minimum and maximum required parking: See Section 10.06.06.
(e)
In the AIR district, this land use shall only be allowed within a terminal building.
(23)
Vehicle Sales
The sale and display of vehicles for sale or rent outside of an enclosed building. Such land uses shall also include an ancillary repair shop associated with the vehicle display lot and sales building.
Regulations
(a)
The display of vehicles shall not be permitted in green space areas, landscaped areas, or required bufferyards.
(b)
Facility shall be surrounded by a bufferyard with a minimum opacity of 0.60 along all borders of the display area abutting residentially zoned property.
(c)
Signs, screening, enclosures, landscaping, or materials being displayed shall not interfere in any manner with either on-site or off-site traffic visibility, including potential vehicle/vehicle and vehicle/pedestrian conflicts.
(d)
Inoperable vehicles or equipment or other items typically stored or displayed in a junkyard or salvage yard shall not be permitted.
(e)
Minimum and maximum required parking: See Section 10.06.06.
(24)
Vehicle Service and Repair
Facilities where vehicle service and/or repair is provided entirely within an enclosed building, including unlicensed or inoperable vehicles used for spare parts.
Regulations
(a)
Facility shall be surrounded by a bufferyard with a minimum opacity of 0.60 along all borders of the display area abutting residentially zoned property.
(b)
Signs, screening, enclosures, landscaping, or materials being displayed shall not interfere in any manner with either on-site or off-site traffic visibility, including potential vehicle/vehicle and vehicle/pedestrian conflicts.
(c)
Outdoor storage of unlicensed or inoperable vehicles is prohibited outside areas fully screened by a solid fence. Outdoor storage of other items typically stored or displayed in a junkyard or salvage yard shall not be permitted.
(d)
Minimum and maximum required parking: See Section 10.06.06.
(25)
Water-Related Recreation
Lake-related recreational facilities such as marinas, yacht clubs, bait shops, boat launching ramps, boat slips, boat storage, docking facilities, boat liveries and rentals, and boat repair and maintenance facilities, including gasoline pumps for marine use.
Regulations
(a)
Minimum required parking
Generally, one (1) space is required per every four (4) patrons at maximum capacity; however, the following specific requirements apply:
1.
Bait shops, marine supplies, and boat repair and maintenance facilities: One (1) space per three hundred (300) square feet of gross floor area plus one (1) space per employee on the largest work shift.
2.
Boat repair and maintenance facilities: One (1) space per four hundred (400) square feet of gross floor area.
3.
Marinas, yacht clubs, boat slips, boat docking facilities, and boat liveries and rentals: One (1) space per watercraft kept on site.
4.
Excursion and fishing cruises: One (1) space per every four (4) patrons at maximum capacity plus one (1) space per employee on the largest work shift.
5.
Boat launching ramps: Per Wisconsin Department of Natural Resources regulations.
(Ord. No. O1657, §§ 90—93, 6-17-2025)
(1)
Active Outdoor Recreation
Recreational land uses which involve active recreational activities. Such land uses include tennis courts, basketball courts, ball diamonds, football fields, soccer fields, neighborhood parks, tot lots, outdoor swimming pools, swimming beach areas, fitness courses, golf courses, and similar land uses.
Regulations
(a)
Each location shall have appropriate hours of use and comply with the noise provisions of Article VI Performance Standards.
(b)
Facilities using recreational facility night lighting and adjoining a residentially zoned property shall install and continually maintain a bufferyard with a minimum opacity of 0.60. Said bufferyard shall be located at the property line adjacent to said residentially zoned property.
(c)
All structures, paved areas, and active recreational improvements such as sandboxes, tot lots, tennis courts, and baseball backstops shall be located a minimum of twenty-five (25) feet from any residentially zoned property.
(d)
Facilities which serve a regional or community-wide function shall provide an off-street passenger loading area if the majority of the users will be children or seniors.
(e)
Minimum and maximum required parking: See Section 10.06.06.
(f)
An Active Outdoor Recreation Land Use that includes the following is required to obtain a Conditional Use Permit (10.10.32):
1.
Any on-site exterior lighting that exceeds 10.0 foot-candles.
2.
Any on-site parking that exceeds fifty (50) spaces.
(2)
Community Living Arrangement (1-8 Residents)
Facilities provided for in Wis. Stat. § 62.23(7)(i), including community living arrangements for adults as defined in Wis. Stat. § 46.03(22), community living arrangements for children as defined in Wis. Stat. § 48.743(1), foster homes as defined in Wis. Stat. § 48.02(6), and adult family homes and community-based residential facilities (CBRFs) as defined in Wis. Stat. § 50.01(1g).
Community Living Arrangements do not include Boarding Houses, Group Daycare Centers, nursing homes, homeless shelters, hospitals, prisons, or jails. Community Living Arrangement facilities are regulated depending upon their capacity as provided for in Wis. Stat. § 62.23(7)(i)1.-5., provided any such regulations do not violate federal or state housing or anti-discrimination laws.
Regulations
(a)
No Community Living Arrangement shall be established within two thousand five hundred (2,500) feet of any other such facility regardless of its capacity.
(b)
The total capacity of all Community Living Arrangements (of all capacities) in the City shall not exceed one (1) percent of the City's population. The Zoning Administrator shall make this determination.
(c)
Foster homes housing four (4) or fewer children and licensed under Wis. Stat. § 48.62 shall not be subject to Subsection (a), above; and shall not be subject to, or count toward, the total arrived at in Subsection (b), above.
(d)
Each facility shall have a rear and side yard which is visually screened from adjacent residential properties using a bufferyard with a minimum opacity of 0.20.
(e)
Minimum and maximum required parking: See Section 10.06.06.
(f)
Driveways shall be considered legal "stacked" parking spaces, provided that each parking space is no less than eight (8) feet in width and eighteen (18) feet in depth. A driveway may contain one (1) or more legal parking spaces.
(g)
Any application is required to disclose in writing the capacity of the community living arrangement proposed.
(3)
Community Living Arrangement (nine (9) to fifteen (15) Residents)
See description under Subsection (2), above.
Regulations
(a)
See Regulations under Section (10.03.12(2)), above.
(4)
Community Living Arrangement (sixteen (16) + Residents)
See description under Subsection (2), above.
Regulations
(a)
See Regulations under Section (10.03.12(2)), above.
(5)
Indoor Institutional
Indoor public and not for profit recreational facilities (such as gyms, swimming pools, libraries, museums, and community centers), government facilities, schools, places of worship, homeless day shelters, hospitals and walk-in clinics, nonprofit clubs, nonprofit fraternal organizations, convention centers, private institutional businesses, jails, prisons, and similar land uses.
Regulations
(a)
An off-street passenger loading area shall be provided if the majority of the users will be children or seniors (as in the case of a school, place of worship, library, or similar land use).
(b)
Minimum and maximum required parking: See Section 10.06.06.
(6)
Institutional Residential
Residential development designed to accommodate Institutional Residential land uses, such as convents, monasteries, dormitories, fraternities, sororities, senior housing, retirement homes, assisted living facilities, nursing homes, hospices, convalescent homes, limited care facilities, rehabilitation centers, homeless shelters (with or without meal service), and similar land uses not considered to be Community Living Arrangements under Sections 10.03.12(2-4) of this Ordinance or under the provisions of Wis. Stat. § 62.23.
Regulations
(a)
Project shall provide an off-street passenger loading area at a minimum of one (1) location within the development.
(b)
Minimum required parking: The following specific parking requirements may apply.
1.
Public or private dormitory: One (1) space per four (4) residents plus one (1) space per nonresident employee on the largest work shift.
2.
Monastery or convent: One (1) space per four (4) beds plus one (1) space per employee on the largest work shift.
3.
Senior housing or retirement housing: One (1) space per dwelling unit.
4.
Assisted living facility or limited care facility: Determined by the Zoning Administrator.
5.
Nursing home or hospice: Determined by the Zoning Administrator.
(7)
Large Scale Public Services and Utilities
Large scale facilities such as public works facilities and garages, wastewater treatment plants, potable water treatment plants, public and/or private utility substations, water towers, well houses, and similar land uses involving buildings and/or fenced enclosures. This does not include uses listed under Small Scale Public Services and Utilities.
Regulations
(a)
All structures and outdoor storage areas shall be located a minimum of twenty (20) feet from any residentially zoned property.
1.
The siting of any new sewage treatment facility is subject to the required separation distances per NR 110.15(3)(d), unless a waiver is obtained through the Wisconsin Department of Natural Resources.
(b)
All outdoor storage areas adjoining a residentially zoned property shall install and continually maintain a bufferyard with a minimum opacity of 0.60. Said bufferyard shall be located at the property line adjacent to said residentially zoned property.
(c)
The exterior of all buildings shall meet the requirements for exterior materials of Article VII.
(d)
Minimum and maximum required parking: See Section 10.06.06.
(8)
Outdoor Open Space Institutional
Cemeteries, privately held permanently protected green space areas, open grassed areas not associated with any particular active recreational land use, and similar land uses.
Regulations
(a)
Minimum and maximum required parking: See Section 10.06.06.
(9)
Passive Outdoor Recreation
Recreational land uses which involve passive recreational activities, such as arboretums, natural areas, wildlife areas, hiking trails, bike trails, cross country ski trails, horse trails, picnic areas, picnic shelters, botanical gardens, fishing areas, and similar land uses.
Regulations
(a)
Minimum and maximum required parking: See Section 10.06.06.
(10)
Small Scale Public Services and Utilities
The erection, construction, alteration, or maintenance by public utilities or municipal or other governmental agencies and private utilities, of underground and overhead lines and pipes for gas, electric, telephone, communications, cable television, steam, public water supply, sanitary sewage collection, stormwater detention or conveyance, or other comparable utilities. Small Scale Public Services and Utilities include such above-surface facilities as poles, guy wires, fire alarm boxes, water hydrants, lift stations, utility posts, police call boxes, cabinets, vaults, and standpipes. This land use category does not include larger utility facilities included under Large Scale Public Services and Utilities, such as electric substations, wastewater treatment plants, well houses, and water towers.
Regulations
(a)
Small Scale Public Services and Utilities are exempt from density, intensity, and bulk regulations.
(b)
All structures and outdoor storage areas shall be located a minimum of twenty (20) feet from any residentially zoned property. Does not include landscaping or storm water detention facilities.
(c)
The exterior of all buildings shall meet the requirements for exterior materials of Article VII.
(d)
Minimum and maximum required parking: See Section 10.06.06.
(1)
Heavy Industrial
Industrial activities that may be wholly or partially located outside of an enclosed building; may have the potential to create certain nuisances which are detectable at the property line; and may involve materials which pose a significant safety hazard. Examples include, but are not limited to: fruit, vegetable, grain, dairy, and meat product producer and by-product producers; slaughterhouses; tanneries; paper, pulp or paperboard producers; chemical and allied product producers (except drug producers) including poison or fertilizer producers; plastic refinement and raw plastics material production; petroleum and coal product producers; asphalt, concrete or cement producers; stone, clay, or glass product producers; primary metal producers; heavy machinery producers; electrical distribution equipment producers; electrical industrial apparatus producers; transportation vehicle producers; commercial sanitary sewage treatment plants; railroad switching yards; recycling facilities not involving the on-site storage of salvage materials; and large-scale alcoholic beverage producers exceeding the production limits in Wis. Stat. § Chapter 125.
Regulations
(a)
Facility shall be surrounded by a bufferyard with a minimum opacity of 1.0 along all borders of the property abutting properties which are not zoned I-H.
(b)
All outdoor activity areas shall be located a minimum of one hundred (100) feet from residentially zoned property.
(c)
In no event shall the storage of items reduce or inhibit the use or number of parking stalls provided on the property below the requirement established by the provisions of Subsection (d), below. If the number of provided parking stalls on the property is already less than the requirement, such storage area shall not further reduce the number of parking stalls already present.
(d)
Minimum and maximum required parking: See Section 10.06.06.
(2)
Indoor Food Production and Processing
Any business whose principal activity is the growing, production, or wholesaling of products that are either grown or stored on-site or shipped to the site for indoor production purposes. This land use also includes the following activities: the seasonal display of plants and related products outdoors; the farming of aquatic plants and animals under controlled conditions utilizing recirculating (closed) system technology; and aquaponics, which is the symbiotic cultivation of plants and aquatic organisms in a recirculating system. This land use does not include Heavy Industrial uses (Section 10.03.14(1)) such as slaughterhouses or other related production uses that may have the potential to create certain nuisances which are detectable at the property line or may involve materials which pose a significant safety hazard.
Regulations
(a)
Outdoor activity regulations.
1.
No areas put to active use outdoor activity areas shall be located in bufferyard areas. No materials shall be stacked or otherwise stored so as to be visible over bufferyard screening elements. All on-site outdoor activity, excluding Outdoor Sales and Display, areas shall be completely enclosed by any permitted combination of buildings, structures, walls, and/or fencing. Such walls and fencing shall be a minimum of 8 feet in height and shall be designed to completely screen all stored materials or products from view of non-industrialized areas at an elevation of 5 feet above the grade of all adjacent properties and rights-of-way. Said walls or fencing shall be screened from residentially zoned property by a bufferyard with a minimum opacity of 0.80.
2.
All Outdoor Storage areas shall be located no closer to a residentially-zoned property than the required minimum setback for buildings on the subject property and shall not be permitted in any landscaping areas, bufferyard areas, or permanently protected green space areas.
3.
In no event shall the storage of items reduce or inhibit the use or number of parking stalls provided on the property below the requirement established by the provisions of (e), below. If the number of provided parking stalls on the property is already less than the requirement, such storage area shall not further reduce the number of parking stalls already present.
4.
Outdoor Storage and/or Outdoor Sales and Display areas shall be separated from any vehicular parking or circulation area by a minimum of 10 feet. This separation shall be clearly distinguished by a physical feature or barrier such as a greenway, curb, fence, or line of planters, or by a clearly marked paved area.
5.
Outdoor storage areas equivalent to 5 percent of the gross building floor area or up to 500 square feet, whichever is less shall comply with the requirements of Incidental Outdoor Storage under Section 10.03.28(14). Any outdoor storage areas exceeding those metrics stated above shall comply with the requirements of Outdoor Storage and Wholesaling as a principal use under Section 10.03.16(2).
6.
Outdoor display areas equivalent to 5% of the total gross square footage of the building or less shall comply with the requirements of Incidental Outdoor Sales and Display under Section 10.03.28(12). Outdoor display areas exceeding those metrics stated above shall comply with the requirements of Outdoor Sales and Display as a principal use under Section 10.03.10(19).
7.
The on-site retail sale of goods shall be considered Incidental Indoor Sales subject to the provisions of Section 10.03.28(10), provided the area devoted to sales does not exceed 25 percent of the total area of the building(s) within which the operation is located. Retail areas that exceed those metrics stated above shall be considered an Indoor Sales or Service principal land use under Section 10.03.10(14).
(b)
On-site processing of seafood is permitted; provided the activity is conducted entirely within an enclosed building and no odors are detectable from the property line. All farming of aquatic plans and animals shall take place entirely within an enclosed building.
1.
Prior to any approvals for the operation, applicants wishing to establish indoor aquaculture operations shall prepare a report outlining the estimated average daily water usage and quantity of wastewater discharge. Such report shall be reviewed and approved by the City of Middleton Public Works Department.
2.
Indoor aquaculture operations shall be connected to the municipal water and sanitary sewer system and all wastewater shall be discharged to the municipal sanitary sewer system.
(c)
On-site composting shall be permitted, subject to the following regulations:
1.
Compost areas shall be fully screened on all four (4) sides by a combination of on-site buildings, solid fencing, and evergreen landscaping.
2.
Composting shall comply with all county, state, and federal rules, regulations, and permitting requirements.
(d)
Minimum and maximum required parking: See Section 10.06.06.
(3)
Light Industrial
Facilities where all operations, with the exception of loading, are conducted entirely within an enclosed building. Such land uses are not associated with nuisances such as odor, noise, heat, vibration, and radiation which are detectable at the property line, and do not pose a significant safety hazard (such as danger of explosion). Examples include, but are not limited to manufacturing and or assembly of clothing, furniture, cabinetry, electronic components, food or related products, motorized equipment assembly, production of plastic products and components from plastics pellets and related material refined or produced off-site, mass-produced arts and crafts, and contractors shops for electrical, plumbing, HVAC, painting, plasters, and other similar trades. Industrial land uses may conduct indoor sales as an accessory use provided that the requirements of Section 10.03.28(10) are complied with.
Regulations
(a)
All activities, except loading and unloading, shall be conducted entirely within the confines of a building.
(b)
Minimum and maximum required parking: See Section 10.06.06.
(4)
Production Greenhouse
Any business in which the principal activity is the growing and wholesaling of plants or plant byproducts such as flowers, shrubbery, trees, and horticultural and floricultural products (not including fruits and vegetables) that are grown or stored within an enclosed building or structure constructed chiefly of glass or glasslike material, cloth, or other permanent material. Such uses also often involve the seasonal display of plants and related products outdoors.
Regulations
(a)
In no event shall the display of items reduce or inhibit the use or number of parking stalls provided on the property below the requirement established by the provisions of Subsection (f), below. If the number of provided parking stalls on the property is already less than the requirement, such display area shall not further reduce the number of parking stalls already present.
(b)
Outdoor display areas equivalent to five (5) percent of the total gross square footage of the building or less shall comply with the requirements of Incidental Outdoor Sales and Display under Section 10.03.28(12). Outdoor display greater than the equivalent to five (5) percent of the total gross square footage of the building shall comply with the requirements of Outdoor Sales and Display as a principal use under Section 10.03.10(19).
(c)
Outdoor Storage and/or Outdoor Sales and Display areas shall be separated from any vehicular parking or circulation area by a minimum of ten (10) feet. This separation shall be clearly distinguished by a physical feature or barrier such as a greenway, curb, fence, or line of planters, or by a clearly marked paved area.
(d)
Signs, screening, enclosures, landscaping, or materials being displayed shall not interfere in any manner with either on-site or off-site traffic visibility, including potential traffic/traffic and traffic/pedestrian conflicts.
(e)
The facility shall be surrounded by a bufferyard with a minimum opacity of 0.60 along all borders of Outdoor Sales and Display areas abutting residentially zoned property.
(f)
Minimum and maximum required parking: See Section 10.06.06.
(Ord. No. O1657, § 94—97, 6-17-2025)
(1)
Indoor Storage and Wholesaling
Land uses primarily oriented to the receiving, holding, and shipping of packaged materials for a single business or a single group of businesses. With the exception of loading and parking facilities, such land uses are contained entirely within an enclosed building. Examples of this land use include conventional warehouse facilities, long-term indoor storage facilities, and joint warehouse and storage facilities. Retail associated with this use shall be considered accessory uses per Section 10.03.28(10).
Regulations
(a)
All new construction of any indoor storage and wholesaling land use shall meet the requirements of Industrial Land Use Design Standards (see Section 10.07.40).
(b)
Minimum and maximum required parking: See Section 10.06.06.
(2)
Outdoor Storage and Wholesaling
Land uses primarily oriented to the receiving, holding, and shipping of packaged materials for a single business or a single group of businesses. Such a land use, in which any activity beyond loading and parking is located outdoors, is considered an Outdoor Storage and Wholesaling land use. Examples of this land use include, but are not limited to, storage yards, equipment yards, lumber yards, and coal yards.
Regulations
(a)
All outdoor storage areas shall be completely enclosed by any permitted combination of buildings, structures, walls, and solid fencing. Such walls and fencing shall be a minimum of eight (8) feet in height and shall be designed to completely screen all stored materials from view from non-industrialized areas. Said walls or fencing shall be screened from residentially zoned property by a bufferyard with a minimum opacity of 0.80.
(b)
Outdoor storage areas accessory to a principal land use and occupying up to five (5) percent of the gross building square footage or up to five hundred (500) square feet, whichever is less shall be regulated as Incidental Outdoor Storage under Section 10.03.28(14).
(c)
The storage of items shall not be permitted in landscaping areas, bufferyard areas, or green space areas.
(d)
In no event shall the storage of items reduce or inhibit the use or number of parking stalls provided on the property below the requirement established by the provisions of Subsection (h). If the number of provided parking stalls on the property is already less than the requirement, such storage area shall not further reduce the number of parking stalls already present.
(e)
Materials being stored shall not interfere in any manner with either on-site or off-site traffic visibility, including potential vehicle/vehicle and vehicle/pedestrian conflicts.
(f)
Inoperable vehicles or equipment, or other items typically stored in a junkyard or salvage yard, shall not be stored under the provisions of this land use.
(g)
All new construction of any outdoor storage and wholesaling land use shall meet the requirements of Industrial Land Use Design Standards (see Section 10.07.40).
(h)
Minimum and maximum required parking: See Section 10.06.06.
(3)
Personal Storage Facility
Also known as "mini-warehouses," these land uses are oriented to the indoor storage of items entirely within partitioned buildings having an individual access to each partitioned storage area.
Regulations
(a)
Facility shall be surrounded by a bufferyard with a minimum opacity of 0.80 along all property borders abutting residentially zoned property.
(b)
All storage shall take place entirely within an enclosed building.
(c)
All new construction of any personal storage facility land use shall meet the requirements of Industrial Land Use Design Standards (see Section 10.07.40).
(d)
Minimum and maximum required parking: See Section 10.06.06.
(1)
Airport
An area used for the landing and take-off of aircraft, as defined in Wis. Stat. § 114.001(3), and any appurtenant areas which are used for airport buildings or other airport facilities or rights-of-way, together with all airport buildings and related air transportation facilities, per Wis. Stat. § 114.002(7).
Regulations
(a)
Airports shall conform to the regulations of Chapter 31 of the City of Middleton Municipal Code.
(b)
All new construction of any airport land use shall meet the requirements of Industrial Land Use Design Standards (see Section 10.07.40).
(c)
Minimum required parking: Minimum and maximum required parking: See Section 10.06.06.
(2)
Distribution Center
Facilities oriented to the short-term indoor storage and possible repackaging and reshipment of materials involving the activities and products of a single user. Retail associated with this use shall be considered accessory uses per Section 10.03.28(10).
Regulations
(a)
Facility shall be surrounded by a bufferyard with a minimum opacity of 1.00 along all property borders abutting residentially zoned property.
(b)
All buildings, structures, outdoor storage areas, and any other activity areas shall be located a minimum of one hundred (100) feet from all lot lines abutting residentially zoned property.
(c)
In no instance shall activity areas be located within landscaping areas, bufferyard areas, or green space areas.
(d)
All new construction of any distribution center land use shall meet the requirements of Industrial Land Use Design Standards (see Section 10.07.40).
(e)
Minimum and maximum required parking: See Section 10.06.06.
(3)
Freight Terminal
Land and buildings representing either end of one (1) or more truck carrier line(s) which may have some or all of the following facilities: yards, docks, management offices, storage sheds, buildings and/or outdoor storage areas, freight stations, and truck maintenance and repair facilities, principally serving several or many businesses requiring trans-shipment.
Regulations
(a)
Facility shall be surrounded by a bufferyard with a minimum opacity of 1.00 along all property borders abutting residentially zoned property.
(b)
All buildings, structures, outdoor storage areas, and any other activity areas shall be located a minimum of one hundred (100) feet from all lot lines abutting residentially zoned property.
(c)
In no instance shall activity areas be located within landscaping areas, bufferyard areas, or green space areas.
(d)
All new construction of any freight terminal land use shall meet the requirements of Industrial Land Use Design Standards (see Section 10.07.40).
(e)
Minimum and maximum required parking: See Section 10.06.06.
(4)
Heliport
An area designed to be used for the landing or takeoff of helicopters including operations facilities, such as maintenance, loading and unloading, storage, fueling, or terminal facilities.
Regulations
(a)
The Heliport shall be located at least two hundred (200) feet from any residentially used or zoned property, measured in a straight line from the closest point of the takeoff and landing area to the property line of the closest residentially used or zoned property. The application shall include an area map showing the distance between the proposed takeoff and landing area and the nearest residential property.
(b)
The Heliport shall be constructed, operated, and maintained in accordance with the rules and regulations of the Federal Aviation Administration (FAA) and State.
(c)
All new construction of any heliport land use shall meet the requirements of Industrial Land Use Design Standards (see Section 10.07.40).
(d)
Minimum and maximum required parking: See Section 10.06.06.
(5)
Off-Site Parking Lot
Off-Site Parking Lots include any areas used for the temporary surface parking of vehicles which are fully registered, licensed, and operable and which serve a principal land use located on a separate lot. See Section 10.06.06 for additional parking regulations.
Regulations
(a)
Access and vehicular circulation shall be designed so as to discourage cut-through traffic.
(b)
Parking lots shall comply with the landscaping requirements of Article VIII.
(6)
Off-Site Structured Parking
Commonly referred to as a parking ramp or parking garage, Off-Site Structured Parking is a type of parking structure for the temporary parking of vehicles which are fully registered, licensed, and operable. Off-Site Structured Parking is a stand-alone, multi-level parking area in which one (1) or more levels are supported above the lowest level. A parking structure may also include underground parking spaces. Parking structures that are incorporated into the same building as a separate principal land use shall be regulated as On-Site Structured Parking under Section 10.03.28(20) See Section 10.06.06 for additional parking regulations.
Regulations
(a)
Parking structures may contain other commercial uses on the ground floor level. Such uses shall be limited to those permitted by right or by conditional use permit in the applicable zoning district.
(b)
Parking structures must meet all applicable bulk requirements.
(c)
Clearly-marked pedestrian connections between the parking structure and adjacent uses shall be required.
(d)
Screening or other improvements that shield parked vehicles from view at each level of the parking structure shall be required.
(e)
Parking structures shall comply with the landscaping requirements of Article VIII.
(f)
Exterior elevations shall be designed to minimize the use of blank concrete façades and shall have an architectural treatment that is compatible with the surrounding architectural context. Materials shall minimize glare in compliance with Section 10.06.34. Exterior elevations are encouraged to be designed to replicate the regular window pattern and other architectural elements of adjacent buildings. See Article VII.
(7)
Transit Center
A building, structure, and/or area designed and used for the purpose of loading, unloading, or transferring passengers or accommodating the movement of passengers from one mode of transportation to another. Examples include, but are not limited to, bus stations, train stations, and park and ride stations.
Regulations
(a)
Facility shall be surrounded by a bufferyard with a minimum opacity of 1.0 along all property borders abutting residentially zoned property.
(b)
All buildings, structures, outdoor storage areas, and any other activity areas, except employee and passenger parking, shall be located a minimum of one hundred (100) feet from all lot lines abutting residentially zoned property.
(c)
All new construction of any transit center land use shall meet the requirements of Industrial Land Use Design Standards (see Section 10.07.40).
(d)
Minimum and maximum required parking: See Section 10.06.06.
(1)
Communication Tower
Any structure that is designed and constructed for the purpose of supporting one (1) or more antennas for communication purposes such as cellular telephones or similar, including self-supporting lattice towers, guyed towers, or monopole towers. For satellite dishes and antennas accessory to a principal use, see Section 10.03.28(21) and 10.03.28(25). Height shall be measured from finished grade to the highest point on the tower or other structure, including the base pad. This definition includes the mobile service support structure, supports, and equipment buildings.
Regulations
(a)
Applicability
This land use shall not be regulated or permitted as Small Scale Public Services and Utilities, or Large Scale Public Services and Utilities. This Section shall apply to the following:
1.
New Towers. All new towers in the City of Middleton shall be subject to these regulations.
2.
Preexisting Towers. Preexisting towers shall not be required to meet the requirements of this Section, other than the requirements of Subsection (b) of this Section.
3.
Towers shall be considered principal uses. A different use on the same lot shall not preclude the installation of a tower on such lot.
4.
See Section 10.03.28(3) for Communication Antennas, an accessory land use typically associated with Communication Towers.
(b)
Compliance with Federal Regulations
Towers shall be erected and installed in accordance with the state electrical code adopted by reference in § 101-31 et seq., National Electrical Code, Federal Communications Commission, Federal Aviation Administration, and the instructions of the manufacturer. In cases of conflict, the stricter requirements shall govern.
(c)
Submittal and review procedure requirements and other requirements specific to Communication Towers must be consistent with Wis. Stat. § 66.0404.
(d)
Permit Required
A permit is required for all new Communication Towers or modifications to existing Communication Towers. The permit application shall contain all of the following information:
1.
The name and business address of, and the contact individual for, the applicant.
2.
The location of the proposed or affected support structure.
3.
The location of the proposed mobile service facility.
4.
If the application is to substantially modify an existing support structure, a construction plan which describes the proposed modifications to the support structure and the equipment and network components, including antennas, transmitters, receivers, base stations, power supplies, cabling, and related equipment associated with the proposed modifications.
5.
If the application is to construct a new mobile service support structure, a construction plan which describes the proposed mobile service support structure and the equipment and network components, including antennas, transmitters, receivers, base stations, power supplies, cabling, and related equipment to be placed on or around the new mobile service support structure.
6.
If an application is to construct a new mobile service support structure, an explanation as to why the applicant chose the proposed location and why the applicant did not choose collocation, including a sworn statement from an individual who has responsibility over the placement of the mobile service support structure attesting that collocation within the applicant's search ring would not result in the same mobile service functionality, coverage, and capacity; is technically infeasible; or is economically burdensome to the mobile service provider.
a.
The application must also include a visual analysis, which may include an annotated photo montage, field mockup, or other technique prepared by or on behalf of the applicant which identifies the potential visual impacts, location, configuration, and the design capacity of the proposed facility to the satisfaction of the Plan Commission. Consideration shall be given to views from public areas as well as from private residences. The analysis shall assess the impacts of the proposed facility and other existing telecommunication facilities in the area, and shall identify and include all feasible mitigation measures consistent with the technological requirements of the proposed personal wireless services. All costs for the visual analysis, and applicable administrative costs, shall be borne by the applicant.
(e)
All service carriers and providers that offer or provide any telecommunications services for a fee directly to the public, either within the City or outside the corporate limits from telecommunications facilities within the City, and all communication tower owners, shall register and provide to the City, pursuant to this Ordinance, on forms to be provided by the Building Inspector and shall provide with each conditional use application the following information below. It shall be unlawful for any personal wireless services carrier or provider who offers or provides services within the City, or any communication tower owner who owns or operates telecommunications facilities within the City, to fail to register and provide the information required within thirty (30) days of such a request by the City.
1.
The identity and legal status of the registrant, including any affiliates.
2.
The name, address and telephone number of the officer, agent or employee responsible for the accuracy of the registration statement.
3.
A narrative and map description of registrant's existing telecommunications facilities within the City, adjacent cities, villages and townships.
4.
Such other information as the Building Inspector may reasonably require.
(f)
Placement Requirements
1.
Towers and guyed wires shall be set back from any property line a minimum distance equal to one hundred (100) percent of the height of the communication tower.
2.
The placement of towers on the roof of existing buildings must maintain a setback from residential zones or properties the same as the building setback required for new buildings.
3.
No communication tower shall be installed closer than 1/4 mile from another communication tower, measured from the base of the tower to the base of the proposed tower, unless it is a tower situated on a multi-tower zoning lot, or credible evidence to a reasonable degree of certainty acceptable to the Plan Commission is submitted showing a clear need for said new tower and the infeasibility of co-locating it on an existing site. For the purposes of this requirement, exempt telecommunications facilities unavailable for co-location shall not be included in the 1/4 mile computation.
(g)
Structural Requirements
Every telecommunication facility shall be designed and constructed so as to comply with the requirements of Wis. Admin. Code Chap. COMM 62.35 to 62.41, amended from time to time. If, upon inspection, the Building Inspector concludes that a tower fails to comply with such codes, in effect at the time of construction, and constitutes a danger to persons or property, then upon notice being provided to the owner of the tower, the owner shall have thirty (30) days or such time as determined by the Building Inspector to bring such tower into compliance with said codes. Failure to bring such tower into compliance within said thirty (30) days or such time as determined by the Building Inspector shall constitute grounds for the removal of the tower or antenna at owner's expense.
(h)
Basic Tower and Building Design
All new communication towers, except exempt facilities as defined in Subsection (i) below, shall be designed to blend into the surrounding environment to the greatest extent feasible. To this end all the following measures shall be implemented.
1.
Communication towers shall be constructed out of metal or other nonflammable material, unless specifically permitted by the City to be otherwise.
2.
Telecommunication support facilities see Subsection (i) Equipment Buildings below.
3.
The City shall have the authority to require reasonable special design (materials, architectural features and color) of the communication tower where findings of particular sensitivity are made (e.g. proximity to historic or aesthetically significant structures, views and/or community features).
4.
Communication towers shall ensure that sufficient anti-climbing measures have been incorporated into the facility, as needed, to reduce potential for trespass and injury.
5.
Accessory communication antenna shall be designed to blend with its supporting structure. The color selected shall be one that in the opinion of the Plan Commission will minimize the visibility of the antennas to the greatest extent feasible.
6.
All new communication towers shall be structurally and electrically designed to accommodate at least three (3) separate antenna arrays, unless credible evidence is presented that said construction is economically and technologically unfeasible or the Plan Commission determines that for reasons of aesthetics or to comply with the standards above, a communication tower of such height to accommodate three (3) antenna arrays is unwarranted. Multi-user communication towers shall be designed to allow for future rearrangement of antennas and to accept antennas mounted at varying heights. Parking areas, access roads, and utility easements shall be shared by site users, at fair market rates as determined by customary industry standards, when in the determination of the Plan Commission this will minimize overall visual impact to the community.
(i)
Equipment Buildings
Equipment buildings, including cabinets, used in connection with commercial communication antennas will be subject to the following conditions:
1.
Any location and impact of the equipment buildings shall be made as minimal as possible so as not to prevent the principal use of the property.
2.
Exterior storage of ground-mounted equipment or materials shall not be permitted.
3.
Equipment buildings or structures may be mounted on the roof of a building provided that such building or structure is placed as unobtrusively as possible (e.g. integrated into the roof design) and/or is screened from view from adjacent roads and properties.
4.
Any ground-mounted equipment building used for accessory equipment must either be screened from view from all adjacent residential and commercial uses and potentially incompatible municipal uses with a bufferyard with a minimum opacity of 0.40, or the equipment building must be constructed with similar materials, style, roof pitch, etc., to complement the architectural character of the surrounding neighborhood.
5.
All ground-mounted equipment buildings shall at a minimum meet the required setbacks of a principal structure for the underlying zoning district and shall meet all applicable building code requirements.
(j)
Height Requirements
1.
Tower height shall be restricted to one hundred (100) feet. Zoning District height restrictions shall not apply to commercial communication towers.
2.
Towers are subject to the Airport Height Limit Overlay Zoning Map. See Section 10.02.83.
(k)
Collocation
A proposed tower shall be structurally and electrically designed to accommodate the applicant's antenna and comparable antennas for two (2) additional users. Towers shall be designed to allow for future rearrangement of antennas and to accept antennas mounted at varying heights.
(l)
Advertising
No form of advertising or identification, or sign is allowed on the tower other than the customary manufacturer identification plate.
(m)
Lighting
Towers shall not be artificially illuminated unless required by the FAA or any other applicable authority.
(n)
Fencing
A tower shall be enclosed by solid fencing not less than six (6) feet in height or a bufferyard with a minimum opacity of 0.40 and secured so that it is not accessible by the general public. Fence design, materials and colors shall reflect the character of the surrounding area.
(o)
Color
The wireless communication tower and antennae shall be of a neutral color such as light gray or sky blue except as dictated by the Federal Aviation Administration (FAA) and be designed to minimize visibility and to blend into the surrounding environment. Towers with antennas shall be designed to withstand applicable wind load requirements as prescribed in the Uniform Building Code. Towers and/or antenna systems shall be constructed of, or treated with, corrosive resistant material. A regular maintenance schedule shall be followed.
(p)
Abandonment
1.
The applicant shall provide a written agreement stating that if the tower or transmitters are unused for a period exceeding three hundred sixty-five (365) days, the applicant shall remove the tower or transmitters upon request from the City.
2.
Within thirty (30) days of the date on which the tower use ceases, the permit holder shall provide the commission written notice of the cessation of use.
3.
If unused facilities are not removed, the City may remove the items at the expense of the owner of the property upon which the tower was placed.
(q)
Inventory and Tracking System
The Zoning Administrator shall compile a list of existing telecommunications facilities within the City's jurisdiction based upon information provided by personal wireless services providers and communication tower owners. The Zoning Administrator shall maintain and update said list on a regular basis. The list shall also include the location of public facilities that may be available for co-location.
(r)
Exempt Facilities
1.
Publicly owned and operated facilities required in the public interest to provide for and maintain a radio frequency telecommunication system, including digital, analog, wireless or electromagnetic waves, for police, fire and other municipal services.
(s)
Applications and Fees
1.
All co-location applications must be processed within the timeframes set forth by the Federal Communications Commission. Any application for the co-location of small wireless facilities must be processed by the City within sixty (60) days of receiving a completed application and any other co-location facility application must be processed within ninety (90) days of receiving a completed application.
2.
All fees associated with small wireless facilities must be a reasonable approximation of the objectively reasonable cost associated with maintaining infrastructure or processing an application in accordance with the maximum values set forth by the Federal Communications Commission.
(1)
Composting Facility
Land uses devoted to the collection, storage, processing, and/or disposal of vegetation or food waste.
Regulations
(a)
Composting facilities shall comply with all county, state, and federal regulations.
(b)
Facility shall provide a bufferyard with a minimum opacity of 1.00 along all borders of the property occupied by non-agricultural land uses.
(c)
All buildings, structures, outdoor storage, and any other activity areas shall be located a minimum of one hundred (100) feet from all lot lines.
(d)
Operations shall not involve the on-site holding, storage, or disposal of hazardous wastes as defined by State Statutes in any manner.
(e)
Minimum and maximum required parking: See Section 10.06.06.
(2)
Extraction
Land uses involving the removal of soil, clay, sand, gravel, rock, minerals, peat, or other material in excess of that required for approved on-site development or agricultural activities.
Regulations
(a)
The facility shall comply with all county, state, and federal regulations and provide copies of all approved county, state, and federal permits.
(b)
The facility shall provide a bufferyard with a minimum opacity of 1.00 along all borders of the property.
(c)
All buildings, structures, outdoor storage, and any other activity areas shall be located a minimum of three hundred (300) feet from all lot lines.
(d)
Required site plans shall include detailed site restoration plans, which shall include at minimum, detailed grading and re-vegetation plans, and a detailed written statement indicating the timetable for such restoration after cessation of the use. All site restoration plans must be submitted to Dane County.
(e)
Minimum and maximum required parking: See Section 10.06.06.
(3)
Indoor Recycling Facility
Land uses providing indoor materials recycling services including materials unloading, materials storage, materials sorting, and materials shipping. This land use does not involve any outdoor activities, outside of Temporary Outdoor Assembly land uses (see Section 10.03.30(6)).
(a)
Indoor Recycling facilities shall comply with all county, state, and federal regulations.
(b)
Facility shall be surrounded by a bufferyard with a minimum opacity of 1.00 along all borders of the property.
(c)
Operations shall not involve the on-site holding, storage, or disposal of hazardous materials as defined by State Statutes in any manner.
(d)
Minimum and maximum required parking: See Section 10.06.06.
(4)
Salvage or Junkyard
Land or structure used for a salvaging operation including but not limited to: the above-ground, outdoor storage and/or sale of waste paper, rags, scrap metal, and any other discarded materials intended for sale or recycling; and/or the collection, dismantlement, storage, or salvage of unlicensed and/or inoperable vehicles intended for scraping or recycling. Recycling facilities involving on-site outdoor storage of salvage materials are included in this land use. This shall not include Vehicle Service and Repair.
Regulations
(a)
Facility shall provide a bufferyard with a minimum opacity of 1.00 along all property borders abutting residentially zoned property. A minimum six (6) foot fence is permitted within the side yard or rear yard unless the height of the storage exceeds six (6) feet, then the maximum height is eight (8) feet.
(b)
All buildings, structures, outdoor storage areas, and any other activity areas shall be located a minimum of one hundred (100) feet from all lot lines.
(c)
In no instance shall activity areas be located within a landscaping or bufferyard areas.
(d)
Shall not involve the storage, handling, or collection of hazardous materials as defined by State Statutes.
(e)
Minimum and maximum required parking: See Section 10.06.06.
(f)
Facility shall secure a salvage dealer license as required by the State of Wisconsin.
(5)
Sand and Mineral Processing
Land or structure used for processing sand or minerals, extracted on-site or transported to the site, that removes the desired product from the mineral or enhances the characteristics of the sand or mineral.
Regulations
(a)
Facility shall provide a bufferyard with a minimum opacity of 1.00 along all property borders abutting residentially zoned property.
(b)
All buildings, structures, outdoor storage, and any other activity areas shall be located a minimum of one hundred (100) feet from all roads and lot lines.
(c)
In no instance shall activity areas be located within a bufferyard area.
(d)
Shall not involve the storage, handling, or collection of hazardous materials as defined by State Statutes.
(e)
Required site plans shall include detailed site restoration plans, which shall include at minimum, detailed grading and re-vegetation plans, and a detailed written statement indicating the timetable for such restoration after cessation of the use. All site restoration plans must be submitted to Dane County.
(f)
The facility shall comply with all county, state, and federal regulations and be able to provide copies of all approved county, state, and federal permits.
(g)
Minimum and maximum required parking: See Section 10.06.06.
(6)
Waste Disposal/Landfill
Waste disposal facilities are any facilities and/or areas used for the disposal of solid wastes including those defined by Wis. Stat. § 289.01(33), but not including Indoor Recycling or Composting operations.
Regulations
(a)
Waste Disposal/Landfill facilities shall comply with all county, state, and federal regulations.
(b)
Facility shall be surrounded by a bufferyard with a minimum opacity of 1.00 along all borders of the property.
(c)
All buildings, structures, outdoor storage, and any other activity areas shall be located a minimum of three hundred (300) feet from all lot lines.
(d)
Operations shall not involve the on-site holding, storage, or disposal of hazardous materials as defined by State Statutes in any manner.
(e)
Required site plans shall include detailed site restoration plans, which shall include at minimum, detailed grading and re-vegetation plans, and a detailed written statement indicating the timetable for such restoration after cessation of the use.
(f)
Minimum and maximum required parking: See Section 10.06.06.
(1)
Large Solar Energy System
Large Solar Energy Systems are the only principal land use permitted on a property and are designed primarily to generate energy for commercial sale off-site. See Section 10.01.23 for definition of a Solar Energy System and Section 10.03.28(27) for Small Solar Energy Systems.
(a)
Large solar energy systems may exceed the maximum height limit of the zoning district by up to ten (10) feet, but in cases where a rooftop or building-mounted system exceeds the maximum height limit, the panel must be set back from the edge of the roof a minimum distance equal to or greater than the height of the panel.
(b)
Large solar system structures shall be finished in a rust-resistant, non-obtrusive finish, and color that is non-reflective.
(c)
All electrical connections shall be located underground or within a building.
(d)
No large solar energy system shall be lighted unless required by the Federal Aviation Administration.
(e)
Clearing of natural vegetation for the purposes of installing a large solar energy system shall be limited to that which is necessary for the construction, operation and maintenance of the large solar energy system and as otherwise prescribed by applicable laws, regulations, and ordinances.
1.
A Landscaping Plan per Section 10.08.20 is required for the entire property. Soils shall be planted and maintained for the duration of operation in perennial vegetation to prevent erosion, manage run off, and improve soil. The area under ground-mounted solar energy systems are exempt from impervious surface requirements if the area under the system contains ground cover consisting of native pollinator-friendly vegetation, or similar prairie grass seed mix, that will result in a short stature prairie with a diversity of forbs or flowering plants that bloom throughout the growing season. Seed mixes and maintenance practices shall be consistent with recommendations made by qualified landscape architects or natural resource professionals such as those from the Wisconsin Department of Natural Resources, Dane County Land & Water Resources Department, or Natural Resource Conservation Service. Shrubs may be used in buffer areas as appropriate for visual screening.
(f)
All access doors or access ways and electrical equipment shall be lockable.
(g)
A large solar energy system shall require a building permit before installation. Building permit applications shall include the following information in addition to that required by the Building Code:
1.
A site plan drawn to scale showing the location of the proposed large solar energy system and per the requirements of Section 10.10.43.
2.
Elevations of the site drawn to scale showing the height, design, and configuration of the large solar energy system and the heights of all existing structures, buildings and electrical lines in relation to property lines and their distance from the small solar energy system.
3.
A standard foundation design along with specifications for the soil conditions at the site.
4.
Specific information on the type, size, rated power output, performance, and safety characteristics of the system, including the name and address of the manufacturer, model, and serial number.
5.
A description of emergency and normal shutdown procedures.
6.
A line drawing of the electrical components of the system in sufficient detail to establish that the installation conforms to all applicable electrical codes and this Subsection.
7.
Evidence that the provider of electrical service to the property has been notified of the intent to install an interconnected electricity generator, except in cases where the system will not be connected to the electricity grid.
8.
Evidence of compliance with Federal Aviation Administration requirements.
9.
A decommissioning plan shall be required to ensure that facilities are properly removed after their useful life. Decommissioning of solar panels must occur in the event they are not in use for twelve (12) consecutive months. The plan shall include provisions for removal of all structures and foundations, restoration of soil and vegetation and a plan ensuring financial resources will be available to fully decommission the site. The Zoning Administrator may require the posting of a bond, letter of credit or the establishment of an escrow account to ensure proper decommissioning.
(h)
The requirements of Wisconsin Statutes, including but not limited to Wis. Stats. §§ 66.0401 and 66.0403, shall apply to all solar energy systems and in the evaluation of such requests. Solar energy systems are a conditional use.
1.
No restriction shall be placed, either directly or in effect, on the installation or use of a solar energy system, unless the restriction satisfies one (1) of the following conditions:
a.
Serves to preserve or protect the public health or safety.
b.
Does not significantly increase the cost of the system or significantly decrease its efficiency.
c.
Allows for an alternative system of comparable cost and efficiency.
(Ord. No. O1657, § 98, 6-17-2025)
(1)
Agricultural Service
Operations pertaining to the sale, handling, transport, packaging, storage, or disposal of agricultural equipment, products, by-products, or materials primarily used or produced by agricultural operations. Examples of such land uses include, but not limited to, agricultural implement sales, storage, or repair operations; feed and seed stores; agricultural chemical dealers and/or storage facilities; animal feed storage facilities; commercial dairies; food processing facilities; canning and other packaging facilities; and agricultural waste disposal facilities (except commercial Composting uses, see Section 10.03.22(1)).
Regulations
(a)
New Agricultural Service uses shall not be located in an existing or platted residential subdivision.
(b)
All buildings, structures, outdoor storage areas, and outdoor animal containments (pastures, pens and similar areas) shall be located a minimum of one hundred (100) feet from all lot lines.
(c)
Once discontinued for a period of three hundred sixty-five (365) days, Agricultural Service uses shall not be re-established except by the granting of a conditional use permit, and shall only be permitted in the AGR district.
(d)
Minimum required parking: Minimum and maximum required parking: See Section 10.06.06.
(2)
Community or Market Garden
Community or Market Garden areas for cultivation and related activities divided into one (1) or more plots to be cultivated by more than one (1) operator or member. These areas may be on public or private lands where on-site sales of crops are permitted.
Regulations
(a)
Community and Market Gardens are permitted on lots of one (1) acre in size or less. They are permitted to occur on lots with residential dwelling units as a standalone principal use or in combination with a residential dwelling unit principal land use as long as a Home Occupation permit is issued under Section 10.03.28(9)(q) and (r).
1.
All activity and garden areas, signs, and structures shall be located a minimum of ten (10) feet from the lot line.
(b)
A site plan shall be submitted to the Zoning Administrator, for approval. Said site plan shall list the property owner, established sponsoring organization and garden manager, and demonstrate consideration for and indicate locations of structures, materials storage, equipment storage, access for deliveries and pickups, water availability, park shelter, and availability of public parking.
(c)
Accessory Buildings
1.
The following structures are permitted in Community and Market Gardens: tool sheds, shade pavilions, restroom facilities with composting toilets, and planting preparation houses, benches, bike racks, raised/accessible planting beds, compost bins, picnic tables, seasonal farm stands, fences, garden art, rain barrel systems, and children's play areas.
2.
A combined total of one thousand two hundred (1,200) square feet of gross floor area of tool sheds, shade pavilions, restroom facilities, and planting preparation houses are permitted on the property by right. For lots larger than one (1) acre, the maximum permitted combined total of gross floor area of these accessory structures on the property shall be increased by one (1) square foot for every one hundred (100) square feet of lot area over one (1) acre.
(d)
Signs shall comply with the regulations of Chapter 22.
(e)
Fences shall comply with the regulations in Section 10.06.40.
(f)
Seasonal farm stands shall be removed from the premises or stored inside a building on the premises during that time of the year when the garden is not open for public use.
(g)
Minimum and maximum required parking: See Section 10.06.06.
(3)
Cultivation
Operations primarily oriented to the on-site, outdoor raising of plants for commercial purposes. Cultivation includes the raising of trees as a crop to be replaced with more trees after harvesting, such as in nursery or Christmas tree operations. The raising of plants for consumption by farm animals is considered Cultivation if said plants are consumed by animals which are located off-site.
Regulations
(a)
Minimum and maximum required parking: See Section 10.06.06.
(4)
Husbandry
All operations primarily oriented to the on-site raising and/or use of animals at an intensity of less than one (1) animal unit per acre. This includes horses, cattle, sheep, goats, llamas (and related species), deer, antelope, swine, foul (including chickens, turkeys, ducks, geese, peacocks, guinea hens, game birds), aquatic species (including fish, shellfish, crustaceans, echinoderms, plants, and algae), and any animals typically hunted or trapped. Apiaries are also considered Husbandry land uses. This excludes animals typically kept as pets and commonly available at commercial pet stores (e.g., domestic dogs and cats, fish, small rodents, reptiles, amphibians, tropical/exotic birds), in addition to Residential Apiary accessory land uses (see Section 10.03.28(22)).
Regulations
(a)
Any building housing animals shall be located a minimum of three hundred (300) feet from any residentially zoned property, and one hundred (100) feet from all other lot lines.
(b)
All outdoor animal containments (pastures, pens, and similar areas) shall be located a minimum of one hundred (100) feet from any residentially zoned property.
(c)
Minimum and maximum required parking: See Section 10.06.06.
(5)
Intensive Agriculture
All operations primarily oriented to the on-site raising and/or use of animals at an intensity equal to or exceeding one (1) animal unit per acre and/or agricultural activities requiring structures, equipment and/or infrastructure specific to one (1) operation rather than to farming in general. Examples of such land uses include feed lots, hog farms, poultry operations, aquaculture, and other operations meeting this criterion.
Regulations
(a)
New Intensive Agricultural uses shall not be located in or adjacent to an existing or platted residential subdivision.
(b)
All buildings, structures, outdoor storage areas, and outdoor animal containments (pastures, pens, and similar areas) shall be located a minimum of three hundred (300) feet from all residentially zoned property and one hundred (100) feet from all other lot lines.
(c)
Intensive Agricultural uses shall be completely surrounded by a bufferyard with a minimum opacity of 1.0.
(d)
Minimum and maximum required parking: See Section 10.06.06.
(6)
On-Site Agricultural Retail
The sale of agricultural products grown exclusively on the site. The sale of products grown or otherwise produced off-site shall not be permitted within On-Site Agricultural Retail operations and shall be regulated as a distinct land use. Packaging and equipment used to store, display, package, or carry products for the convenience of the operation or its customers (such as egg cartons, baskets, containers, and bags) shall be produced off-site.
Regulations
(a)
All structures shall meet all required setbacks for nonresidential land uses.
(b)
On-Site Agricultural Retail uses, once discontinued for a period of three hundred sixty-five (365) days, shall not be re-established except with the granting of a conditional use permit, and shall only be permitted in the AGR district.
(c)
Minimum and maximum required parking: See Section 10.06.06.
(1)
Accessory Dwelling Unit (ADU):
1) Residential dwellings located directly above the ground floor of a building used for an office, commercial, or institutional land use, or 2) a residential dwelling unit located on the same lot as a single-family or two-family dwelling unit, either in the same building or in a detached building. An ADU is independently habitable and provides the basic requirements of shelter, heating, cooking and sanitation. A manufactured home may be used as an accessory dwelling unit.
Regulations
(a)
The number of occupants of the Accessory Dwelling Unit shall not exceed one family.
(b)
Additional entrances shall not be added to the front elevation of an existing building but may be added to side, rear, or street side elevations.
(c)
Accessory Dwelling Unit entryways within a rear, side, or street side yard shall be connected to a street frontage by a paved walkway or driveway. The owner shall post one on-building locational sign displaying the address of the ADU, in compliance with Section 22.05(3) and Figure 22.11(3) of the sign ordinance.
(d)
Accessory Dwelling Units shall adhere to the principal setback requirements and other regulations for the underlying zoning district.
(e)
For Accessory Dwelling Units located on the same lot as a single-family or two-family dwelling unit, the following additional regulations shall apply:
1.
The principal building or Accessory Dwelling Unit must be occupied by the owner of the property as their primary residence for a period of at least ten months in a calendar year. A restrictive agreement between the property owner and the City shall be recorded prior to issuance of a zoning permit and occupancy being granted.
2.
The Accessory Dwelling Unit shall not be sold separately or otherwise conveyed or titled separately from the principal dwelling.
3.
The maximum size of an Accessory Dwelling Unit shall not exceed the size of the principal dwelling's floor area.
4.
The appearance or character of the principal building must not be significantly altered so that its appearance is no longer that of a single-family or two-family dwelling.
(f)
Minimum required off-street parking: None
(g)
A Zoning Permit shall be required pursuant to Section 10.10.41 prior to establishing any Accessory Dwelling Unit.
(h)
Neither fees in-lieu of parkland, nor park improvement fees shall be charged for a permit to construct an Accessory Dwelling Unit.
(2)
Boathouse
A permanent structure used for the storage of watercrafts and associated materials and includes all structures which are totally enclosed, have roofs or walls or any combination of structural parts (Wis. Admin. Code Chap. NR 325.03).
(a)
Boathouses are subject to the requirements of Wis. Stat. § 30.121 and Wis. Admin. Code Chap. NR 325.
(3)
Communication Antenna
Devices used for the transmission or reception of electromagnetic waves, attached to a Communication Tower, building, or alternative tower structures, including associated equipment buildings/cabinets.
Regulations
(a)
Applicability
1.
A different use on the same lot shall not preclude the installation of an antenna or tower on such lot.
2.
This land use category includes the placement of new antennas and equipment buildings used in conjunction with an existing tower.
3.
Allowed as a permitted use in all zoning districts if the communication antenna meets all requirements in Subsection (b) below.
(b)
General Requirements
1.
Compliance with Federal Regulations
Towers shall be erected and installed in accordance with the state electrical code adopted by reference in § 10-31 et seq., National Electrical Safety Code, Federal Communications Commission, Federal Aviation Administration, and the instructions of the manufacturer. In cases of conflict, the stricter requirements shall govern.
2.
Antennas shall not encroach into airspace prescribed by the most current Airport Height Limit Map. See Section 10.02.83.
3.
Co-Location of Communication Antennas on Communication Tower and Commercial Building
Antennas may be placed on commercial communication towers, and commercial, institutional, and industrial buildings.
a.
Unless applicant is submitting an application to locate or co-locate upon an existing tower or structure, an analysis shall be prepared by or on behalf of the applicant; subject to the approval of the Plan Commission, which identifies all reasonable, technically feasible alternative locations and/or facilities which would be useable for the proposed personal wireless services. The intention of the alternatives analysis is to present alternative strategies which would minimize the number, size and adverse environmental impacts, including aesthetics, of facilities necessary to provide the needed services to the City and surrounding rural and urban areas. The analysis shall address the potential for co-location at an existing or a new site and the potential to locate facilities as close as possible to the intended service area. It shall also explain the rationale for selection of the proposed site in view of the relative merits of any of the feasible alternatives. Approval of the project is subject to the Plan Commission making a finding that the proposed site results in fewer or less severe environmental impacts, including aesthetics, than any feasible alternative site. The City may require independent verification by a qualified engineer of this analysis at the applicant's expense. Facilities which are not proposed to be co-located with another telecommunication facility shall provide a written explanation why the subject facility is not a candidate for co-location.
4.
Height Requirements
Antenna height shall be restricted to one hundred (100) feet above grade when located on a commercial communication tower. Antenna height shall be restricted to twenty (20) feet above the height of the commercial building roof or alternative tower structure when located on such structure. District height restrictions shall not apply to antennas.
5.
Alternative Structures
Antennas may be placed on alternative tower structures such as clock towers, bell steeples, light poles, water towers, or similar structures.
6.
Advertising
No form of advertising or identification, sign or mural is allowed on the antenna other than the customary manufacturer identification plate.
7.
Structural and electrical plans showing how the proposed tower will accommodate the co-location of the applicant's antenna and comparable antennas of additional users; and the plans and specifications whereby the proposed tower is designed to allow for future rearrangement of antennas to accommodate additional users and the mounting of additional antennas at varying heights.
8.
Stealthing Requirements
a.
Antennas and supporting electrical and mechanical equipment must be of a neutral color that is identical to, or closely compatible with, the color of the supporting structure so as to make the antenna and related equipment as visually unobtrusive as possible.
b.
A wall-mounted antenna shall be as flush to the wall as technically possible and shall not project above the wall on which it is mounted unless it must for technical reasons. The antenna and cables on roofs shall not be visible from an adjacent public right-of-way.
(c)
Equipment Buildings
Equipment buildings, including cabinets, used in connection with commercial communication antennas will be subject to the following conditions:
1.
Any location and impact of the equipment buildings shall be made as minimal as possible so as not to prevent the principal use of the property.
2.
Exterior storage of ground-mounted equipment or materials shall not be permitted.
3.
Equipment buildings or structures may be mounted on the roof of a building provided that such building or structure is placed as unobtrusively as possible (e.g. integrated into the roof design) and surrounded by a bufferyard with a minimum opacity of 0.40.
4.
Any ground-mounted equipment building used for accessory equipment must either be screened from view from all abutting residential uses and potentially incompatible municipal uses with a bufferyard with a minimum opacity of 0.40, or the equipment building must be constructed with similar materials, style, roof pitch, etc., to complement the architectural character of the surrounding neighborhood.
5.
All ground-mounted equipment buildings shall at a minimum meet the required setbacks of a principal structure for the underlying zoning district, and shall be located in the side or rear yards.
(d)
Exceptions
Exceptions to the setbacks and height requirements listed above may be granted by the Board of Zoning Appeals if appropriate engineering data is submitted showing that failure characteristics of the structure will not adversely impact abutting property and the structure does not encroach into airspace prescribed by the most current Airport Height Limit Map. See Section 10.02.83.
(e)
Abandonment
1.
The applicant shall provide a written agreement stating that if the antenna or transmitters are unused for a period exceeding three hundred sixty-five (365) days, the applicant shall remove the antenna or transmitters upon request from the City.
2.
Within thirty (30) days of the date on which the antenna use ceases, the permit holder shall provide the commission written notice of the cessation of use.
3.
If unused facilities are not removed, the City may remove the items at the expense of the owner of the property upon which the tower was placed.
(f)
Exempt Facilities
1.
Publicly owned and operated facilities required in the public interest to provide for and maintain a radio frequency telecommunication system, including digital, analog, wireless or electromagnetic waves, for police, fire and other municipal services.
(g)
Applications and Fees
1.
All co-location applications must be processed within the timeframes set forth by the Federal Communications Commission. Any application for the co-location of small wireless facilities must be processed by the City within sixty (60) days of receiving a completed application and any other co-location facility application must be processed within ninety (90) days of receiving a completed application.
2.
All fees associated with small wireless facilities must be a reasonable approximation of the objectively reasonable cost associated with maintaining infrastructure or processing an application in accordance with the maximum values set forth by the Federal Communications Commission.
(4)
Company Cafeteria
A food service operation which provides food only to company employees and their guests.
Regulations
(a)
Company Cafeterias shall meet state food service requirements.
(b)
Company Cafeterias shall be located on the same property as a principal land use engaged in an operation other than food service.
(5)
Detached Accessory Building
Detached buildings accessory to a principal use including but not limited to buildings used to shelter parked passenger vehicles (including garages and carports), sheds and similar structures used to store maintenance equipment on the subject property, workshops, kennels, greenhouses, boathouses, and pool houses, per the Building Code. Such structures shall comply with the definition for Accessory Structure, Detached in Section 10.01.23. Site plan review pursuant to 10.10.43 is required for any such structure to be placed on a parcel located in any zoning district with the exception of SR-L, SR-M, SR-H, MH-D, TR-D, and TR-F.
Regulations
(a)
Size
A combined total of one thousand (1,000) square feet of building footprint area for all detached accessory buildings on the property is permitted by right. For lots larger than one acre, the maximum permitted combined total of the building footprint area of all detached accessory buildings on the property shall be increased by one square foot for every one hundred (100) square feet of lot area over one acre. In no instance shall the detached accessory building area exceed the ground floor area of the principal building. Attached garages shall not count toward this total.
(b)
Height
See Article II for detached accessory building maximum building heights.
(c)
Location
Detached accessory buildings are permitted in the rear yard and side yards only, in compliance with minimum setback requirements for accessory structures.
1.
For existing lakeshore lots having overall dimensions capable of supporting a dwelling structure and a garage and existing on August 17, 1984, carports, garages, storage structures, and accessory dwelling units may be located on the side of the lot having street frontage, at a specific location to be determined by the Zoning Administrator, guided by the principle that vehicles parked in the driveway shall not overhang the functioning street right-of-way.
(6)
Electric Vehicle Charging
Includes all indoor and outdoor charging facilities for electric and hybrid electric vehicles. This land use is typically accessory to on-site parking, off-site parking, driveways, or indoor parking facilities.
Regulations
(a)
Equipment
Vehicle charging equipment must be designed and located so as to not impede pedestrian, bicycle, or wheelchair movement or create safety hazards.
(b)
Posted Information
Information must be posted identifying voltage and amperage levels and any type of use, fees, or safety information related to the electric vehicle charging station.
(c)
Maintenance
Electric vehicle charging stations must be maintained in all respects, including functioning of the equipment. A phone number or other current contact information must be provided on the equipment for reporting when it is not functioning, or other problems are encountered.
(d)
Electric vehicle charging in all residential zoning districts (see Article II) shall not be operated as a commercial venture and is limited to use only by residents and guests of residents.
(e)
Parking requirements for Electric Vehicle Charging can be found in Section 10.06.06(6).
(7)
Farm Residence
A Farm Residence is a single-family detached dwelling unit located on the same property as any of the principal agricultural land uses listed in Section 10.03.26.
(8)
Minor Accessory Structures and Obstructions
Minor accessory structures are those features that are generally less than sixteen (16) feet in height and less than one hundred twenty (120) square feet in area and which, in the determination of the Zoning Administrator, are similar in size, character, and function to those listed. Obstructions are those features that are integral to or otherwise permanently attached to the principal structure. Other integral or attached features, which in the opinion of the Zoning Administrator are not similar to those listed in this table, shall comply with the principal building setbacks. See Section 10.01.23 for definitions of awning, balcony, canopy, deck, patio, porch, and recreational equipment.
Regulations
(a)
All items must stay out of the vision triangle.
(9)
Home Occupation
Economic activities performed within a principal or accessory residential dwelling unit that do not significantly alter the residential character of the dwelling unit, dwelling structure, or the parcel and are secondary and incidental. Examples include personal and professional services, handicrafts, and retail conducted online. Home Occupations are intended to provide a means to accommodate a small home-based family or professional business without the necessity of a rezoning from a residential to a business district. Home Occupations are those that include on-site customers or non-resident employees and are limited to low intensity businesses and businesses with limited overlap of customer visits. As of the adoption of this Ordinance, any existing Home Occupation land use is a legal conforming land use.
Regulations
(a)
The Home Occupation shall be conducted only within the enclosed area of the dwelling unit or the enclosed area of a residential accessory building or garage.
(b)
The Home Occupation shall be conducted by a resident who uses the location of the Home Occupation as their principal residence.
(c)
No more than two (2) clients shall be seen at any given time.
(d)
No Home Occupations shall have outside employees or clients between the hours of 7:00 p.m. and 8:00 a.m.
(e)
There shall be no exterior evidence of the Home Occupation and no exterior alterations which change the character of the structure as a residential dwelling unit.
(f)
No structural alterations or construction involving features not customarily found in dwellings are allowed.
(g)
No storage or display of materials, goods, supplies, or equipment related to the operation of the Home Occupation shall be visible outside any structure located on the premises.
(h)
There shall be no adverse impact to the residential character of the neighborhood due to the emission of noise, odor, smoke, dust, gas, heat, vibration, electrical interference, traffic congestion, or other nuisances resulting from the Home Occupation.
(i)
The Home Occupation shall not involve the use of commercial vehicles for more than occasional delivery of materials to or from the premises.
(j)
No vehicle larger than one (1) ton capacity truck or van that is used in conjunction with a home occupation shall be stored on the premises or parked on adjacent residential streets. This prohibition shall also include specialized mobile equipment. Trailers will be allowed to park on the residential street provided that a home occupation permit is approved, the trailer is registered and a fee paid, and the trailer is safely parked adjacent to the permitted property in accordance with City on-street parking regulations.
(k)
No mechanical equipment or machinery shall be used other than is usually, customary, and incidental to the residence for domestic or hobby purposes.
(l)
The percentage of the gross finished floor area that may be devoted to the Home Occupation(s) shall not exceed twenty (20) percent of the principal structure, or three hundred (300) square feet, whichever is less.
(m)
Home Occupations shall be carried out only by members of the immediate family residing on the premises and one (1) non-resident employee.
(n)
The Home Occupation shall not involve manufacturing; processing; the sales or repair of large appliances, vehicles, or motors; commodity or equipment rental; care, grooming, breeding, or keeping of animals; or construction of equipment and machinery. Restaurants, taverns, clubs, amusement or entertainment establishments, or uses that dispatch persons other than the occupant of the residence or equipment from the premises are not permitted Home Occupations.
(o)
Items shall not be sold or offered for sale on the premises. This provision shall not apply to online sales.
(p)
Minimum required parking: One (1) space is required if there is a non-resident employee. Employee parking in the driveway is permitted.
(q)
Permit Required
1.
The applicant shall submit a completed application and any supporting documentation to the Zoning Administrator.
2.
A permit shall not be issued until the Zoning Administrator determines that the proposed Home Occupation complies with the standards as set forth in this Ordinance.
a.
All Community or Market Garden uses shall be required to obtain a Home Occupation permit, but are only subject to the provisions of Section 10.03.26(2).
3.
A permit for Home Occupation is valid for three hundred sixty-five (365) days annually (January to December). It must be renewed every year, subject to the provisions of this Section.
(r)
Special Permit Provisions
1.
Approvals/permits required by other regulatory bodies such as the Health, Police, or Fire Departments must be submitted prior to the issuance of the Home Occupation permit.
2.
A permit for a Home Occupation is issued to an individual person. It is not transferable to any other resident, address, or other occupation. Upon termination of the permit holder's residency, the Home Occupation permit shall be null and void.
3.
A permit for a Home Occupation shall be revocable by the Zoning Administrator, due to failure of the owner/operator to observe all requirements of the permit and/or Zoning Ordinance.
(10)
Incidental Indoor Sales
Retail sales activity conducted exclusively indoors which is incidental to a principal land use such as Indoor Storage and Wholesaling on the same site.
Regulations
(a)
The total area devoted to sales activity shall not exceed twenty-five (25) percent of the total area of the buildings on the property.
(b)
Minimum required parking: Adequate parking, per the requirements of Section 10.06.06, shall be provided for customers. Said parking shall be in addition to that required for the principal land use.
(11)
Incidental Light Industrial
Light industrial activities conducted exclusively indoors which is incidental to a principal land use, such as Indoor Sales or Service, on the same site.
Regulations
(a)
The total area devoted to light industrial activity shall not exceed fifteen (15) percent of the total area of the buildings on the property.
(b)
Minimum required parking: See Section 10.06.06.
(12)
Incidental Outdoor Sales and Display
The sale and display of merchandise or equipment outside of an enclosed building and is incidental to a principal commercial or industrial land use.
Regulations
(a)
Incidental Outdoor Sales and Display land uses shall comply with all regulations of Section 10.03.10(19).
(b)
The display area shall not be greater than the equivalent to five (5) percent of the gross floor area of the building. Display area in excess of equivalent to five (5) percent of the gross floor area of the building shall be considered Outdoor Sales and Display as a principal use under Section 10.03.10(19).
(c)
All outdoor display areas shall be located no closer to a residentially zoned property than the required minimum setback for buildings on the subject property.
(d)
The display of items shall not be permitted in any landscaping areas, bufferyard areas, or green space areas.
(e)
In no event shall the display of items reduce or inhibit the use or number of parking stalls provided on the property below the requirements applicable to the principal use. If the number of provided parking stalls on the property is already less than the requirement, display areas shall not further reduce the number of parking stalls already present.
(f)
Outdoor display areas shall be separated from any vehicular parking or circulation area by a minimum of ten (10) feet. This separation shall be clearly distinguished by a physical feature or barrier such as a greenway, curb, fence, line of planters, or by a clearly marked paved area.
(g)
Signs, screening, enclosures, landscaping, or materials being displayed shall not interfere in any manner with either on-site or off-site traffic visibility, including potential traffic/traffic and traffic/pedestrian conflicts.
(13)
Incidental Office
Indoor Offices where the accessory function is the handling of information or administrative services. Office uses do not typically provide services directly to customers on a walk-in basis.
(a)
The gross floor area devoted to office activity shall not exceed twenty-five (25) percent of the total gross floor area of the buildings on the property.
(b)
Minimum required parking: See Section 10.06.06.
(14)
Incidental Outdoor Storage
Outdoor storage which is incidental to a principal land use, such as Indoor Sales or Service, on the same site.
Regulations
(a)
All open storage areas and open containers shall be fully screened from view by a wall and a solid gate made of wood or similar material. The exterior of the wall must match the materials and color of the principal structure and shall be a minimum of eight (8) feet in height.
(b)
The storage area shall not exceed five (5) percent of the gross building floor area or up to five hundred (500) square feet, whichever is less. Storage area in excess of five (5) percent of the gross building floor area or five hundred (500) square feet shall be regulated as Outdoor Storage and Wholesaling under Section 10.03.16(2).
(15)
In-Family Suite
An area within a dwelling unit that may contain separate kitchen, dining, bathroom, laundry, living, and sleeping areas, including exterior porches, patios, and decks. In addition to the required internal physical connection, separate outdoor access or separate access to the garage may be provided. However, external entries serving as the primary or only access to the In-Family Suite are prohibited.
Regulations
(a)
In-Family Suites may not be occupied by a non-family member.
(b)
The maximum floor area cannot exceed twenty (20) percent of the existing dwelling unit's finished habitable area.
(c)
In-Family Suites shall be considered and regulated as part of a single-family dwelling unit.
(d)
The principal dwelling unit and the In-Family Suite shall together appear as a single-family dwelling.
(e)
A separate walled garage area or driveway is not permitted.
(f)
A separate address for the In-Family Suite is not permitted.
(g)
A separate utility connection or meters are not permitted.
(h)
A physical all-weather connection between the main living area and the In-Family Suite must be present. This required connection may not occur through an attic, basement, garage, porch, or other non-living area. A door may be used to separate the In-Family Suite from the principal dwelling, but may not be locking, except that a locking door may be used for the bedroom and bathroom doors of the In-Family Suite.
(i)
When an application is submitted for a building permit to accommodate what is explicitly listed as, or could possibly serve as, an In-Family Suite, the building plan shall be marked as "not a separate dwelling unit or apartment," and a signed letter from the applicant stating agreement with this condition shall be filed.
(16)
In-Home Daycare
Occupied residences in which a licensed person or persons provide childcare for four (4) to eight (8) children. The care of less than four (4) children is not subject to the regulations of this Chapter. Wis. Stat. § 66.1017(1)(a).
(17)
Migrant Employee Housing
Migrant Employee Housing includes any facility subject to the regulation of Wis. Stat. § 103.90(3)(a).
Regulations
(a)
Migrant Employee Housing shall be surrounded by a bufferyard with a minimum opacity of 0.60 along all property lines adjacent to all properties in residential or mixed-use zoning districts.
(b)
Migrant Employee Housing shall be an accessory use to an active principal land use and under the same ownership.
(18)
Nonresidential Accessory Structure
Structures primarily used to shelter business vehicles or to store maintenance equipment for the subject property.
Regulations
(a)
The combined floor area of all structures shall not exceed the floor area of the principal building on the parcel.
(b)
See Article II for accessory structure maximum building heights and setbacks.
(c)
All nonresidential accessory structures must meet the design requirements of the principal land use on the site. See Article VII.
(19)
On-Site Parking Lot
On-Site Parking Lots are any areas located on the same site as the principal land use which are used for the temporary surface parking of vehicles which are fully registered, licensed, and operable. See Section 10.06.06 for additional parking regulations.
Regulations
(a)
Access and vehicular circulation shall be designed to prevent cut-through traffic.
(20)
On-Site Structured Parking
Structured parking which is accessory to a principal land use such as Apartments, Office, and Mixed-Use Buildings, and which is incorporated into the same building as the principal land use. Stand-alone structured parking that is not integrated with another land use shall be regulated as Off-Site Structured Parking, a principal use under Section 10.03.18(6). See Section 10.06.06 for additional parking regulations.
Regulations
(a)
On-Site Structured Parking shall comprise no more than fifty (50) percent of the ground floor level on the primary street frontage. Underground parking that is partially above grade shall not count toward this total.
(21)
Personal Antenna and Towers
Devices used for the transmission or reception of electromagnetic waves, external to or attached to the exterior of any building. This definition includes the structure, supports, and equipment buildings. This land use applies to antenna and towers for personal use. Examples include amateur radio antenna and personal television antenna.
Regulations
(a)
In the SR-L, SR-M, and SR-H districts, there may only be one (1) roof-mounted antenna and one (1) tower per lot. In all other districts there may be one (1) antenna for each dwelling unit or business and one (1) tower per lot.
(b)
In all districts, freestanding towers with antennas may not be located in a front yard or street side yard or closer to the right-of-way than the closest edge of the principal building, whichever is less.
(c)
The minimum required setback for freestanding towers with antennas shall be equal to the combined height of the tower and antenna.
(d)
Towers are restricted to fifty (50) feet and roof-mounted antennas are restricted to thirty (30) feet above the highest peak of the roof.
(e)
Guy wires shall not be anchored within a provided front yard or provided street side yard or closer to the right-of-way than the closest edge of the principal building, whichever is less. It shall be installed in such a manner as to protect the public safety and to minimize the visual impact on surrounding properties and from public streets.
(f)
The attachment to an antenna or tower of any flag, decorative or commercial sign, streamers, pennants, ribbons, spinners or waving, fluttering or revolving devices is prohibited.
(22)
Residential Apiary
The assembly of one (1) or more colonies of honey bees.
(a)
No bees shall be intentionally kept and maintained other than honey bees.
(b)
No more than six (6) hives may be kept on a single parcel and no hive shall exceed twenty (20) cubic feet in volume.
(c)
No hive shall be located closer than three (3) feet from any property line in different ownership.
(d)
No hive shall be located closer than ten (10) feet from a public right-of-way or twenty-five (25) feet from a principal building on an abutting property in different ownership.
(e)
A constant supply of water shall be provided for all hives.
(f)
A flyway barrier at least six (6) feet in height shall shield any part of a property line in different ownership that is within twenty-five (25) feet of a hive. The flyway barrier must effectively direct bees to fly up and over the barrier when flying in the direction of the barrier. The flyway barrier shall consist of a wall, fence, dense vegetation, or combination thereof, and it shall be positioned to transect both legs of a triangle extending from an apex at the hive to each end point of the part of the property line to be shielded. The barrier shall further comply with any applicable fence regulations contained in Section 10.06.40.
(23)
Residential Kennel
An enclosed structure designed for the keeping of dogs that is accessory to a residential use.
Regulations
(a)
Outdoor containments for dogs shall be subject to the setback requirements for accessory structures for the district in which they are located.
(b)
All dogs must be licensed. See Chapter 7 of the City of Middleton Municipal Code.
(24)
Residential Stable
An accessory structure that is designed for the keeping of equines for the private use of the occupants of the principal dwelling and their guests, but in no event for hire.
Regulations
(a)
Outdoor containments for equines shall be located a minimum of twenty-five (25) feet from any residentially zoned property.
(b)
A minimum lot area of one hundred seventy-five thousand (175,000) square feet (four (4) acres) is required for a private residential stable.
(c)
A maximum of one (1) horse per two (2) acres of fully enclosed (by fencing and/or structures) area is permitted.
(d)
The minimum permitted size of horse or similar animal stall shall be 100 square feet.
(25)
Satellite Dish
A bowl-shaped antenna with which signals are transmitted to or received from a communications satellite. This land use applies to dishes for personal use and private use.
Regulations
(a)
In all districts, satellite dishes less than three (3) feet in diameter may be located anywhere on a lot, except the provided front yard or provided street side yard, or can be located on any principal or accessory building.
(b)
In the SR-L, SR-M, SR-H, MH-D, TR-D, TR-F, MR-L, MR-M, and MR-H districts satellite dishes three (3) feet in diameter and larger may only be located in rear yards or on the roof of a detached structure, so long as the height of the detached garage and the dish is equal to or less than the height of the principal building.
(c)
In all other districts, satellite dishes three (3) feet in diameter and larger may be erected on the roof of any principal or accessory buildings, and in side or rear yards; but shall not be located in street or front yards.
(d)
No advertising or graphic designs exceeding one (1) square foot are permitted on satellite dishes in any zoning district.
(e)
In the event that a usable signal cannot be obtained by locating a satellite dish in locations permitted by this Chapter, the Board of Zoning Appeals may grant a variance to allow the placement of a satellite dish in any location.
(26)
Short-Term Residential Rental
Includes all lodging places and tourist cabins and cottages, other than hotels and motels, in which sleeping accommodations are offered for pay to tourists and transients. It does not include private boarding houses (Section 10.03.06(12)) or rooming houses not accommodating tourists or transients, or bed and breakfast establishments regulated under Wis. Admin. Code ACTP § 73.
(a)
Definitions
1.
"Tourist or Transient" means a person who travels to a location away from his or her permanent address for a short period of time, not to exceed thirty (30) days for vacation, pleasure, recreation, culture, business or employment.
2.
"Operator" is a person who is the owner or lessee of property being used as a Short-Term Residential Rental and who is conducting the Short-Term Residential Rental business by, among other things, interacting digitally and in person with guests and is identified in Short-Term Residential Rental listings and advertisements as the Short-Term Residential Rental "host." An operator may not be an LLC, Trust, Nonprofit, or other corporate entity.
3.
"Primary Residence" means a dwelling unit that serves as an individual's true, fixed and permanent home for at least one hundred eighty-three (183) days in a calendar year and to which, whenever absent therefrom, that individual intends to return. Additional characteristics of a primary residence include, but are not limited to, where an individual receives mail, claims residence for purposes of voter registration, pays for utilities, and lists as their address on state issued identification cards. An individual can have only one (1) primary residence.
(b)
Permitted by Right
All zoning districts.
1.
Land Use Requirement
Short-Term Residential Rental shall only be located as an Accessory Land Use to a Residential Land Use as defined in Section 10.03.06.
2.
Annual City License Required
Each Short-Term Residential Rental shall operate only during the valid period of an Annual City of Middleton Short-Term Residential Rental License for each calendar year. Operating a Short-Term Residential Rental without a current version of a valid license shall be considered a violation of this Zoning Ordinance, and subject to the penalties of Section 10.10.60. The following information shall be provided on an annual basis, prior to issuance of said Annual City of Middleton Short-Term Residential Rental License:
a.
Completed City of Middleton Short-Term Residential Rental Application, which includes the property owner's contact information; the designated operator's contact information; emergency contact information, the period of operation; and room tax registration information;
b.
A current floor plan for the Short-Term Residential Rental at a minimum scale of one (1) inch equals four (4) feet, and Site Plan of the property at a minimum scale of one (1) inch equals ten (10) feet showing on-site parking spaces and trash storage areas;
c.
General Building Code Inspection by City, and submittal of Official Building Code Inspection Report with no outstanding compliance orders remaining;
d.
Proof of valid property and liability insurance for the dwelling unit;
e.
Copy of State of Wisconsin Tourist Rental House License;
f.
Copy of Public Health Madison Dane County Tourist Rooming House License;
g.
Payment of an Administrative Fee, set annually by the City, to cover the costs to the City of administering the above.
h.
The City of Middleton Short-Term Residential Rental License shall be issued with the completion of the above requirements.
3.
Property Management Requirements
Each Short-Term Residential Rental shall be managed consistent with the following requirements:
a.
Only the owner of the property may operate a Short-Term Residential Rental, except that a renter may operate if explicitly allowed in the lease. A property owner proposing to operate a Short-Term Residential Rental in a dwelling unit that is subject to rules, regulations, or bylaws of a condominium association may only operate the dwelling unit as Short-Term Residential Rental if explicitly allowed by the condominium association.
b.
If the Short-Term Residential Rental is operated for stays of more than six (6) but fewer than twenty-nine (29) consecutive days, the Short-Term Residential Rental may be operated for no more than one hundred eighty (180) days in any consecutive three hundred sixty-five (365) day period as provided in Wis. Stat. § 66.1014(2)(d). The one hundred eighty (180) allowable days in any three hundred sixty-five (365) day period must run consecutively and the Short-Term Residential Rental operator must give the Zoning Administrator notice of the first rental of any three hundred sixty-five (365) day period.
c.
If the Short-Term Residential Rental is operated for stays of one (1) to six (6) consecutive days, the tourist rooming house shall be the operator's primary residence.
d.
If an operator who is operating a Short-Term Residential Rental pursuant to Subsection 3.c. above occupies the residence at the time of rental, there is no limit to the number of days the Short-Term Residential Rental may operate.
e.
If an operator who is operating a Short-Term Residential Rental pursuant to Subsection 3.c. above does not occupy the residence at the time of rental, the Short-Term Residential Rental may operate no more than thirty (30) days per permitting year.
f.
Maximum tourist or transient occupancy shall not exceed the lesser of two (2) times the number of legal bedrooms in the dwelling unit or twelve (12). Children under the age of twelve (12) shall not count toward the maximum tourist occupancy.
g.
Each Short-Term Residential Rental shall provide and maintain a Guest Register and shall require all guests to register their true names and addresses before allowing occupancy. The Guest Register shall be kept intact and available by the operator for inspection by representatives of the City for at least one (1) year from the day of the conclusion of the period of operation.
h.
Each Short-Term Residential Rental shall maintain the following written Business Record for each rental of the Short-Term Residential Rental: the true names and addresses of any person renting the property, the dates of the rental period (which must be a minimum of one (1) consecutive day), and the monetary amount or consideration paid for the rental. The Business Record shall be kept intact and available by the operator for inspection by representatives of the City for at least one (1) year from the day of the conclusion of the period of operation.
4.
Property Operational Requirements
Each Short-Term Residential Rental shall be operated per the following requirements:
a.
Parking Requirements
i.
A minimum of one (1) off-street parking space shall be provided on the subject property for each Short-Term Residential Rental. If the Short-Term Residential Rental provides three (3) or more bedrooms, an additional on-site parking space is required for each additional bedroom over two (2).
ii.
All guest parking for vehicles and trailers shall be within a legal off-street parking space on an area paved with concrete or asphalt. No parking is permitted on gravel, lawn, or planter bed areas. Street parking for guests is not permitted.
b.
Site Appearance Requirements
i.
Aside from a changing mix of guests and their vehicles, there shall be no evidence of the property being used as a Short-Term Residential Rental visible on the exterior of the subject property.
ii.
No exterior signage related to the Short-Term Residential Rental is permitted, other than the property address.
iii.
No outdoor storage related to the Short-Term Residential Rental land use is permitted, except for typical residential recreational equipment, seating, and outdoor cooking facilities which are permitted only within the rear yard.
iv.
No recreational vehicle, camper, tent, or other temporary lodging arrangement shall be permitted to accommodate guests.
c.
Neighborhood Impact Requirements
i.
No outdoor activity shall occur between the hours of 10:00 p.m. and 7:00 a.m.
ii.
At all times, no noise, lighting, odor or other impacts from the subject property shall be detectable at the property line at levels exceeding the requirements of Article VI of the Middleton Zoning Ordinance.
iii.
No vehicular traffic shall be generated by the Short-Term Residential Rental at levels exceeding those typical for a detached single-family dwelling unit.
d.
Short-Term Residential Rental Advertising
i.
No outdoor advertising is allowed on the subject property.
ii.
The Short-Term Residential Rental shall not be advertised for availability in any form of media unless the required City of Middleton Short-Term Residential Rental License has been issued.
5.
Penalties and License Revocation
a.
For violations see Section 10.10.60.
b.
The Annual Short-Term Residential Rental License may be revoked for more than two (2) violations of the requirements of the License, the requirements specific to Short-Term Residential Rental, the License, or the remainder of Zoning Code.
(27)
Small Solar Energy System
Small Solar Energy Systems are accessory to a principal land use on a property and are designed primarily to generate energy for said principal land use. See Section 10.01.23 for definition of a Solar Energy System.
Regulations
(a)
Except for in the Conservancy (CON) district, where they are allowed only as a conditional use, solar energy systems (rooftop, building-mounted, and freestanding) are permitted uses in all zoning districts as accessory structures. All restrictions on platted land that prevent or unduly restrict the construction and operation of solar energy systems, are void (Wis. Stats. § 236.292).
(b)
Freestanding solar energy systems shall only be located within the side and rear yards.
1.
They shall not be considered an impervious surface in the measurement of the maximum impervious surface ratio if the surface under the panels is pervious.
(c)
Rooftop and building-mounted small solar energy systems may exceed the maximum height limit of the primary structure by up to ten (10) feet, but in cases where the system exceeds the maximum height limit, the panel must be setback from the edge of the roof a minimum distance equal to or greater than the height of the panel.
(d)
See Article II for specific bulk, density, and intensity requirements for accessory structures in each district. There are no screening or design requirements for Small Solar Energy Systems.
(e)
The City will apply Wis. Stats. §§ 66.0401 and 66.0403 in the evaluation of small solar energy system plans.
1.
No restriction shall be placed, either directly or in effect, on the installation or use of a solar energy system, unless the restriction satisfies one (1) of the following conditions:
a.
Serves to preserve or protect the public health or safety.
b.
Does not significantly increase the cost of the system or significantly decrease its efficiency.
c.
Allows for an alternative renewable system of comparable cost and efficiency.
(28)
Small Wind Energy System
A wind energy conversion system consisting of a wind turbine, a tower and associated control or conversion electronics which will be used primarily to reduce on-site consumption of utility power. Small wind energy systems have a total installed nameplate capacity of three hundred (300) kW or less and consist of individual wind turbines that have an installed nameplate capacity of not more than one hundred (100) kW.
(a)
This Section provides the standards and procedures for issuance of conditional use permits for wind energy systems, as defined in Wis. Stat. § 66.0403(1)(m). The purpose of this Section is to ensure any proposed wind energy system complies with applicable provisions of Wis. Admin. Code Chap. PSC 128, as amended, and this Section.
(b)
Wind energy systems are a conditional use in every district. The City will apply Wis. Stat. § 66.0401 and Wis. Admin. Code Chap. PSC 128, as amended, in the evaluation of such requests.
1.
No restriction shall be placed, either directly or in effect, on the installation or use of a wind energy system, unless the restriction satisfies one (1) of the following conditions:
a.
Serves to preserve or protect the public health or safety.
b.
Does not significantly increase the cost of the system or significantly decrease its efficiency.
c.
Allows for an alternative renewable system of comparable cost and efficiency.
(Ord. No. O1657, §§ 99—104, 6-17-2025)
All of the following temporary uses shall comply with the standards and procedures herein. Unless stated otherwise below, temporary uses are limited to ninety (90) days per calendar year. Temporary uses may be extended in duration through the conditional use process (See Section 10.10.32).
(1)
Garage or Estate Sale (Auction)
Any temporary display of used household goods for sale on a property customarily used as a residence that does not exceed four (4) days in duration and that occurs no more than four (4) times in one (1) calendar year. Such sales are also commonly referred to as rummage sales or yard sales.
Regulations
(a)
The person or persons conducting the Garage or Estate Sale shall reside on the lot where the sale is conducted. Permits are not required for Garage or Estate Sales.
(b)
Sales shall occur only during daylight hours.
(c)
Garage or Estate Sales shall not exceed four (4) days in duration.
(d)
Garage or Estate Sales shall not be held more than four (4) times in any twelve (12) month period and shall not be held more than two (2) times in any thirty (30) day period.
(e)
Signs shall comply with the regulations of Chapter 22.
(2)
Farmer's Market
Farmer's Markets include the temporary or occasional outdoor retail sales of farm produce, plants and flowers, bakery goods, and/or crafts from vehicles or temporary stands located within a parking lot.
Regulations
(a)
The parking lot shall have direct vehicular access to a collector or higher classification street.
(b)
Farmer's Market land uses are limited to the operating hours of 7 a.m. to 10 p.m.
(3)
Temporary Farm Product Sales/Roadside Stand
This land use includes the temporary outdoor display and sales of farm products, typically from a roadside stand.
Regulations
(a)
Display shall not obstruct pedestrian or vehicular circulation, including vehicular sight distances.
(b)
Sales and display activities shall be limited to daylight hours.
(c)
Minimum required parking: Two (2) spaces per vendor.
(4)
Temporary Moving Container (Residential)
Portable storage containers designed and used primarily for the temporary storage of household goods and other such materials for use on a limited basis on residential property.
Regulations
(a)
The container shall not exceed outside dimensions of twenty (20) feet in length, eight (8) feet in width, and nine (9) feet in height.
(b)
The container shall be permitted on the property for up to ninety (90) days associated with each change of occupancy as defined by a recorded change in property ownership or valid lease.
(c)
The container cannot encroach on a public sidewalk, bike path, street, right-of-way, or neighboring property.
(d)
The container must be placed on asphalt, concrete, or a similar hard-paved surface.
(5)
Temporary On-Site Construction Storage, Contractor's Project Office, and On-Site Real Estate Sales Office
Includes any structure or outdoor storage area designed for the on-site storage of construction equipment and/or materials for an active construction project, a structure containing an on-site construction management office for an active construction project, or a building which serves as an on-site sales office for a development project.
Regulations
(a)
The land use shall be removed upon the expiration of the building permit associated with the active construction project. Projects requiring the land use to be in place beyond the expiration date of the building permit shall require a conditional use permit. Temporary Real Estate Offices shall be removed or converted to a permitted land use within ten (10) days of the completion of sales activity.
(b)
Projects requiring the construction storage or contractor's project office structure to be in place for more than three hundred sixty-five (365) days shall require a conditional use permit. Temporary On-Site Real Estate Sales Office uses that exceed ninety (90) days per calendar year shall require a conditional use permit.
(c)
The storage area shall be limited to a maximum area not exceeding ten (10) percent of the property's gross site area.
(6)
Temporary Outdoor Assembly
Includes any organized outdoor assembly such as outdoor weddings, wedding receptions, or tent meetings. Refer to Sec. 7.17 of the City of Middleton Municipal Code for Special Event Permit requirements.
Regulations
(a)
Temporary Outdoor Assembly uses that exceed three (3) days per calendar year shall require a conditional use permit.
(b)
Activities shall not obstruct pedestrian or vehicular circulation, including vehicular sight distances.
(c)
If subject property is located adjacent to a residentially zoned property, activities shall be limited to daylight hours.
(7)
Temporary Outdoor Sales
Includes the display of any items outside the confines of a building, which is not a permitted or conditional use or a special event otherwise regulated by the Municipal Code. Examples of this land use include, but are not limited to, sidewalk sales, seasonal garden shops, tent sales, Christmas tree sales, and fireworks sales (also see Chapter 7.09 of the City of Middleton Municipal Code). Food and/or beverage trucks, carts, stands, or trailers are regulated in Chapter 7.01 of the City of Middleton Municipal Code.
Regulations
(a)
Temporary Outdoor Sales uses that exceed ninety (90) days per calendar year shall require a conditional use permit.
(b)
Display shall not obstruct pedestrian or vehicular circulation, including vehicular sight distances.
(c)
If subject property is located adjacent to a residential zoning district, sales and display activities shall be limited to daylight hours.
(d)
The user shall provide a layout of the activities to the Zoning Administrator, for approval prior to any event or sales activity.
(e)
Minimum required parking: None.
(8)
Temporary Outdoor Storage Container (Nonresidential)
Enclosed, lockable storage containers such as shipping containers, semi-trailers, storage pods, or other fully enclosed trailers for use on a limited basis on a nonresidential property. Other forms of temporary outdoor storage containers are prohibited.
Regulations
(a)
The container must be placed on asphalt, concrete, or a similar hard-paved surface.
(b)
The container shall be permitted on the property for up to thirty (30) days per calendar year. Containers in place for more than thirty (30) days per calendar year shall be regulated as Outdoor Storage and Wholesaling under Section 10.03.16(2) or Incidental Outdoor Storage under Section 10.03.28(14).
(9)
Temporary Refuse Container
Includes any receptacle or container used for the temporary disposal of refuse on-site usually in the form of a dumpster or other similarly large metal container associated with a construction, remodeling, moving, or other similar project on-site.
Regulations
(a)
The container shall not exceed outside dimensions of twenty-five (25) feet in length, eight (8) feet in width, and eight (8) feet in height or forty (40) yards of capacity.
(b)
The container shall be permitted on the property for up to thirty (30) consecutive days.
(c)
The container cannot encroach on a public sidewalk, bike path, street, right-of-way, or neighboring property.
(d)
The container must be placed on asphalt, concrete, or a similar hard-paved surface.
(10)
Temporary Relocatable Building
Includes any manufactured building which serves as a temporary building for less than six (6) months.
Regulations
(a)
Facilities serving for more than six (6) months shall be considered conditional uses and are subject to the general standards and procedures presented in Section 10.10.32.
(b)
The structure shall be limited to a maximum area not exceeding ten (10) percent of the property's gross site area.
(11)
Temporary Shelter Structure
These shelters are typically supported by poles, have a fabric or plastic roof and/or sides, and are commonly used for short term temporary storage of vehicles and other personal property. This does not include camping tents or permanent Residential Accessory Structures. Temporary Shelter Structures are prohibited.
(12)
Temporary Vehicle Sales
Includes the sale of personal vehicles and equipment on trailers such as ATVs, snowmobiles, motorcycles, horse trailers, campers, etc.
Regulations
(a)
No more than one (1) vehicle or trailer shall be for sale on any property at any given time for up to a maximum of thirty (30) days per calendar year.
(b)
Vehicles or trailers for sale must be licensed.
(c)
Vehicles or trailers for sale must be owned by one (1) of the following:
1.
The property owner or lessee.
2.
An employee of the property owner or lessee, only during the hours in which the employee is working.
(d)
Vehicles or trailers for sale must be parked in a legal parking space or a residential driveway. Vehicles or trailers for sale shall not be parked on a lawn or other landscaped area.