Medium District Special RM6S
The Residential Medium Special (RM6S) designation promotes single family residential development..
(Ord. Ordinance 7/2008 RM6S, Amended, 06/18/2008)
The following are permitted uses in any RM6S district:
(Ord. Ordinance 7/2008 RM6S, Amended, 06/18/2008)
The following uses may be permitted subject to a conditional use permit:
(Ord. 02-2015, Amended, 06/17/2015; Ord. Ordinance 7/2008 RM6S, Amended, 06/18/2008)
The maximum density in the RM6S districts shall be as follows:
| District | Threshold Density (du/net acre) | Min. Lot Size (Sq. Ft.) | Max. Density (du/net acre) |
| RM-6S | 0-7.26 | 6,000 | 7.26 |
(Ord. Ordinance 7/2008 RM6S, Amended, 06/18/2008)
The following standards shall apply to all lots in the RM6S district;
Standards:
| Minimum Lot Size | Minimum Lot Width (Single Family) | Minimum Lot Width (Multi-Family) | Maximum Height of Main Buildings | Maximum Height of Accessory Buildings | Maximum Site Coverage |
| 6,000 Square Feet | 60' | 100' | 30' | 18' | 50% |
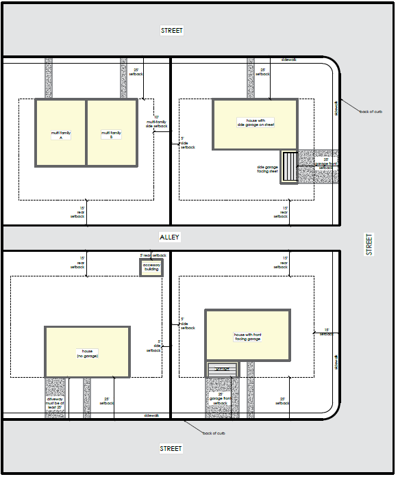
Setbacks
| Front Yard | Side Yard (Single Family) | Side Yard (Multi-Family) | Street Side Yard | Rear Yard Main Building | Rear Yard Accessory Building |
25' | 5' | 10' | 15' - 25' See Note 1 | 15' | 5' See Note 2 |
Notes: (see picture below for setback examples)

Other Standards:
(Ord. Ordinance 2-2012 General Revision, Amended, 06/20/2012; Ord. Ordinance 7/2008 RM6S, Amended, 06/18/2008)
13.26.010 through 13.26.070 - Home occupations
13.27.010 through 13.27.070 - In-Home Day Care
13.30.010 through 13.30.030 - Keeping of Horses, Other Large Animals and Farm Animals
13.31.010 through 13.31.030 - Fencing and Walls
13.32.010 through 13.32.080 - Vehicular Parking, Loading and Maneuvering Areas
13.33.010 through 13.33.030 - Landscaping
13.34.010 through 13.34.060 - Yards and Setbacks
13.35.010 through 13.35.100 - Design Review and Site Plan Review
(Ord. Ordinance 7/2008 RM6S, Amended, 06/18/2008)
Medium District Special RM6S
The Residential Medium Special (RM6S) designation promotes single family residential development..
(Ord. Ordinance 7/2008 RM6S, Amended, 06/18/2008)
The following are permitted uses in any RM6S district:
(Ord. Ordinance 7/2008 RM6S, Amended, 06/18/2008)
The following uses may be permitted subject to a conditional use permit:
(Ord. 02-2015, Amended, 06/17/2015; Ord. Ordinance 7/2008 RM6S, Amended, 06/18/2008)
The maximum density in the RM6S districts shall be as follows:
| District | Threshold Density (du/net acre) | Min. Lot Size (Sq. Ft.) | Max. Density (du/net acre) |
| RM-6S | 0-7.26 | 6,000 | 7.26 |
(Ord. Ordinance 7/2008 RM6S, Amended, 06/18/2008)
The following standards shall apply to all lots in the RM6S district;
Standards:
| Minimum Lot Size | Minimum Lot Width (Single Family) | Minimum Lot Width (Multi-Family) | Maximum Height of Main Buildings | Maximum Height of Accessory Buildings | Maximum Site Coverage |
| 6,000 Square Feet | 60' | 100' | 30' | 18' | 50% |
Setbacks
| Front Yard | Side Yard (Single Family) | Side Yard (Multi-Family) | Street Side Yard | Rear Yard Main Building | Rear Yard Accessory Building |
25' | 5' | 10' | 15' - 25' See Note 1 | 15' | 5' See Note 2 |
Notes: (see picture below for setback examples)

Other Standards:
(Ord. Ordinance 2-2012 General Revision, Amended, 06/20/2012; Ord. Ordinance 7/2008 RM6S, Amended, 06/18/2008)
13.26.010 through 13.26.070 - Home occupations
13.27.010 through 13.27.070 - In-Home Day Care
13.30.010 through 13.30.030 - Keeping of Horses, Other Large Animals and Farm Animals
13.31.010 through 13.31.030 - Fencing and Walls
13.32.010 through 13.32.080 - Vehicular Parking, Loading and Maneuvering Areas
13.33.010 through 13.33.030 - Landscaping
13.34.010 through 13.34.060 - Yards and Setbacks
13.35.010 through 13.35.100 - Design Review and Site Plan Review
(Ord. Ordinance 7/2008 RM6S, Amended, 06/18/2008)