And Setbacks
It is the intent of this section to supplement the Residential Districts (MR, RM and RM6S) development standards with respect to landscaping, yards and setbacks.
(Ord. Ordinance 9-2007 Yards and Setbacks, Amended, 08/22/2007)
All setbacks and yards must be landscaped to the following minimum standards:
(Ord. Ordinance 9-2007 Yards and Setbacks, Amended, 08/22/2007; Ord. Ordinance 1-2006 Yards and Set Backs, Amended, 02/08/2006)
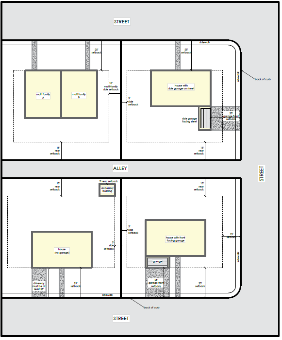
| Zone | Front Yard | Single Yard (Single Family) | Side Yard (Multi-Family) | Street Side Yard | Rear Yard Main Building | Rear Yard Accessory Building |
RM | 25' | 5' | 10' | 15' - 25' See Note 1 | 15' | 5' See Note 2 |
| RM6S | 25' | 5' | 10' | 15' - 25' See Note 1 | 15' | 5' See Note 2 |
| MR7 | 25' | 5' | 10' | 15' - 25' See Note 1 | 10' | 5' See Note 2 |
| MR15 | 25' | 5' | 10' | 15' - 25' See Note 1 | 10' | 5' See Note 2 |
| MR30 | 25' | 5' | 10' | 15' - 25' See Note 1 | 10' | 5' See Note 2 |
Notes: (see picture below for setback examples)

Corner lots shall have extra width in addition to the width prescribed in each land use district at least equal to the width of the minimum interior side yard prescribed for a main structure in the district.
Where a lot is triangular, gore shaped, or otherwise irregularly shaped, required lot width may be measured at the rear of the required front yard. In such instance the minimum street frontage shall be 40 feet.
Fences, hedges, or walls not exceeding the maximum allowed height may occupy any portion of a side or rear yard; provided, where any such fence or wall projects beyond the front yard line or setback line toward the front property line, it shall not be more than four feet in height, except in the sight clearance areas.
13.31.010 through 13.31.030 – Fencing and Walls.
13.32.010 through 13.32.080 - Vehicular Parking, Loading and Maneuvering Areas.
13.35.010 through 13.35.100 – Design Review and Site Plan Review.
13.13.050 – Residential Medium Special (RM6S) District, General Development Standards.
13.14.060 – Residential Medium (RM) District, General Development Standards.
13.15.060 – Multiple Residential (MR) District, General Development Standards.
(Ord. Ordinance 9-2007 Yards and Setbacks, Amended, 08/22/2007)
And Setbacks
It is the intent of this section to supplement the Residential Districts (MR, RM and RM6S) development standards with respect to landscaping, yards and setbacks.
(Ord. Ordinance 9-2007 Yards and Setbacks, Amended, 08/22/2007)
All setbacks and yards must be landscaped to the following minimum standards:
(Ord. Ordinance 9-2007 Yards and Setbacks, Amended, 08/22/2007; Ord. Ordinance 1-2006 Yards and Set Backs, Amended, 02/08/2006)
| Zone | Front Yard | Single Yard (Single Family) | Side Yard (Multi-Family) | Street Side Yard | Rear Yard Main Building | Rear Yard Accessory Building |
RM | 25' | 5' | 10' | 15' - 25' See Note 1 | 15' | 5' See Note 2 |
| RM6S | 25' | 5' | 10' | 15' - 25' See Note 1 | 15' | 5' See Note 2 |
| MR7 | 25' | 5' | 10' | 15' - 25' See Note 1 | 10' | 5' See Note 2 |
| MR15 | 25' | 5' | 10' | 15' - 25' See Note 1 | 10' | 5' See Note 2 |
| MR30 | 25' | 5' | 10' | 15' - 25' See Note 1 | 10' | 5' See Note 2 |
Notes: (see picture below for setback examples)

Corner lots shall have extra width in addition to the width prescribed in each land use district at least equal to the width of the minimum interior side yard prescribed for a main structure in the district.
Where a lot is triangular, gore shaped, or otherwise irregularly shaped, required lot width may be measured at the rear of the required front yard. In such instance the minimum street frontage shall be 40 feet.
Fences, hedges, or walls not exceeding the maximum allowed height may occupy any portion of a side or rear yard; provided, where any such fence or wall projects beyond the front yard line or setback line toward the front property line, it shall not be more than four feet in height, except in the sight clearance areas.
13.31.010 through 13.31.030 – Fencing and Walls.
13.32.010 through 13.32.080 - Vehicular Parking, Loading and Maneuvering Areas.
13.35.010 through 13.35.100 – Design Review and Site Plan Review.
13.13.050 – Residential Medium Special (RM6S) District, General Development Standards.
13.14.060 – Residential Medium (RM) District, General Development Standards.
13.15.060 – Multiple Residential (MR) District, General Development Standards.
(Ord. Ordinance 9-2007 Yards and Setbacks, Amended, 08/22/2007)