84 - GENERAL DEVELOPMENT STANDARDS
A.
Purpose and Use.
The purpose of this chapter is to define general design objectives for new commercial, industrial, residential, and public development projects, in order to assist site planners and designers in understanding the city's basic design expectations for on-site development. These guidelines should also be applied as feasible to enhance existing structures or site conditions. The intent is to enhance the community's overall value and appearance, and to achieve well-designed projects that complement the small-town feel of the community and its heritage. In addition, these design objectives are intended to:
1.
Encourage originality, flexibility, innovation in site planning and development, including the architecture, landscaping and design of proposed developments in relation to the city as a whole and/or surrounding areas.
2.
Discourage monotonous, drab, unsightly, dreary and inharmonious developments, minimize discordant and unsightly surroundings and visual blight, and avoid inappropriate and poor quality design.
3.
Aid in assuring that structures, signs and other improvements are properly related to their sites and the surrounding sites and structures, with due regard to the aesthetic qualities of the natural terrain and landscaping and that proper attention is given to exterior appearances of structures, signs and other improvements.
These objectives shall be considered during the design and review of development proposals, and are to be used in conjunction with other applicable zoning development standards, ordinances and/or special development requirements. In the event that a general design objective conflicts with a specific standard of other ordinances or codes, the specific standard shall prevail.
The design criteria established in this section are not intended to be rigid or restrict creative solutions. The planning commission, at its discretion, shall have the authority to consider and accept alternative site and/or building designs that are determined to meet the general intent of this chapter.
B.
Site Design Objectives.
1.
Sites should be developed in a coordinated manner to complement adjacent structures through placement, architecture, colors and size/mass.
2.
Whenever possible, buildings on the same site should be clustered and incorporate plazas, court-yards, pocket parks and other pedestrian use areas.
3.
Sites should be designed to avoid the appearance of domination by automobiles. Positive methods to achieve this concept include:
a.
Orienting buildings to fronting streets and placing parking at the rear and/or sides;
b.
Designing the required parking area into smaller, discrete, connected lots rather than large, single-use lots;
c.
Providing well-defined pedestrian walkways through parking areas and from public sidewalks into the site. Well-defined walkways use pavers, changes in color, texture and composition of paving materials and vertical plantings such as trees and shrubs. The minimum width of walkways shall be five feet.
d.
Parking areas shall be designed to be partially screened from view from adjacent streets and building occupants. Screening can be accomplished through a number of methods, including:
i.
Orienting buildings away from parking areas;
ii.
Placing buildings between streets and parking lots;
iii.
Using extensive landscape screening, beams, and architecturally treated walls.
4.
Sites shall incorporate transit-compatible designs where appropriate. Transit compatibility means designs that are pedestrian oriented, provide safe and convenient access to transit facilities, and foster efficient transit service.
5.
Where appropriate, site plans shall be designed to provide vehicle and pedestrian connections with adjacent sites.
6.
All utility lines should be placed underground onsite and along street frontages.
7.
Phased projects shall be designed to the greatest degree possible so that each phase, in and of itself, is complete in its functional, traffic, parking, visual, drainage and landscaping aspects.
C.
Building Design Objectives.
1.
No single architectural style is required. How-ever, design themes that reflect the city's small-town atmosphere, and its natural resource and recreation-based heritage, are preferred. Such design themes typically include use of stone, heavy timbers, other natural appearing materials and colors in the building, and overall site design. Building accents which relate to the community's origin in the late 1930's and 1940's are also encouraged. Reliance on or use of standardized "corporate or franchise" design prototypes that are more representative of typical urban development is strongly discouraged.
2.
Buildings should reflect an individual design that has considered site location, conditions, and surrounding development. Building design should pro-vide a sense of permanence and timelessness. High quality construction and materials should be used to ensure that buildings will not look dated or worn down over time. Building designs should reflect an individual style and form and not merely current trends.
3.
A consistent visual identity shall be applied to all sides of buildings visible to the general public. In these areas, all building sides shall have an equivalent level of quality of materials, detailing and window placement. Abrupt ending of architectural details shall be avoided with no radical change in details or features or materials.
4.
Long blank walls are to be avoided. Positive methods to achieve this objective include change in colors and materials, placement of windows, use of awnings and canopies, and architectural details and features such as corners, setbacks, and offsets. Windows at ground level may be tinted; however, mirrored windows are not allowed. Reflective roofing is not allowed.
5.
Buildings facing streets shall incorporate pedestrian scaled entrances. Pedestrian scaled en-trances are those that provide an expression of human activity or use in relation to building size. Doors, windows, entrances and other features should be designed to respond to the size of the human body and not give the appearance of anonymity or over-whelming the building's users.
6.
Modulation (defined as a measured setback or offset in a building face) shall be incorporated to re-duce overall bulk and mass of buildings. The planes of exterior walls should not run in one continuous direction more than fifty (50) to sixty (60) feet without an offset or setback.
7.
Large buildings should have height variations to give the appearance of distinct elements.
8.
Building design and/or facade shall incorporate traditional building materials such as masonry, stone, heavy timbers, brick and other natural appearing materials.
9.
Building colors and roof materials should accent, blend with, or complement surroundings. Bright or brilliant colors should be reserved for trim and accents.
10.
Existing buildings that have faded exterior color(s), and/or that have generally a worn or weathered appearance, should be repainted prior to establishment of any new uses.
11.
Landscape areas or planting beds should be provided around perimeters to separate buildings from surrounding pavement areas.
12.
Outdoor storage areas, mechanical equipment, utility vaults, and trash receptacles must not be visible from adjacent streets and pedestrian walkways.
13.
Outdoor mechanical equipment shall be appropriately screened from view and to minimize noise. The method of screening shall be architecturally integrated with the building with respect to materials, color, shape and size.
14.
Site services should be located on the least visible side of a building or site or within interior building spaces.
15.
Ground level outdoor enclosures shall be composed of materials similar to the main structure.
16.
Materials used for site features such as fences, screen walls, and signs should be appropriate to the zone district where the development is located and should complement building design through materials, color, shape, and size.
17.
Developments should provide transition with adjacent uses especially regarding building location, size and scale. No single building or development should dominate adjacent uses in terms of size, bulk, view blockage, or shading.
D.
Sign Objectives.
1.
Building Signs.
a.
Individual letters rather than cabinet signs are preferred.
b.
Backlit individual letters are a preferred alternative.
c.
Signs should be compatible in scale and proportion with building design and other signs.
d.
A specific sign program or concept should be designed for multiple tenant buildings or complexes. Color and letter style shall be coordinated when businesses share the same building and consistent sign patterns (placement on buildings) shall be utilized.
e.
Exposed neon tubes are acceptable for non-letter sign elements but are discouraged for letters.
2.
Freestanding Signs.
a.
Freestanding signs should provide only name and address of the building and/or building tenants.
b.
Project landscaping should be designed to incorporate freestanding signs.
E.
Landscaping Objectives
1.
Provide unity of design through repetition of plants and coordination with adjacent developments.
2.
Landscape materials should be hardy species that are adaptable to local conditions, easily maintained, and drought tolerant. Use of native plants is strongly encouraged.
3.
The design for parking areas shall include deciduous and evergreen trees to provide shade and break up expanses of asphalt.
4.
Landscape islands or medians shall have no dimension narrower than four to five feet.
5.
Interior landscaping is required for parking lots containing ten or more spaces at a ratio of twenty (20) square feet of landscape area for every one hundred (100) square feet of parking area. All landscaped areas should be protected by wheelstops or curbing, or be of sufficient width to prevent damage to plants by overhanging vehicles.
6.
Existing vegetation should be incorporated into overall site design.
7.
Landscaped areas shall be irrigated by mechanical sprinkler systems. Reclaimed water should be used in the irrigation system if practicable.
8.
Required perimeter setback areas shall be densely landscaped with a combination of trees and shrubs, which form a ninety (90) percent ground cover within three years of planting.
9.
Interior site landscaping is required to define pedestrian ways, enclose outdoor gathering and seating areas, and reduce building mass.
10.
Architectural features such as low walls, fountains and sculptures may be used in places where planting areas are limited or restricted.
11.
Project entrances should be enhanced through changes in paving materials such as brick payers, textured and colored concrete, providing entry structures and unity in planting of trees and shrubs.
12.
Individual trees along walkways and along sidewalks in the internal portions of projects should be planted in tree wells or planter boxes.
13.
Open stormwater detention facilities should be incorporated into project landscaping and open space where geographically feasible.
14.
Open stormwater detention facilities shall be landscaped and visually screened.
F.
Lighting Objectives
1.
Moving and flashing lights are prohibited.
2.
Use cut-off lenses or hoods to prevent glare and light spill off project site onto adjacent properties, buildings and roadways.
3.
Lighting standards should be designed and sized to be compatible with the character of the development.
(Ord. 01-136 § 1)
(Ord. No. 21-290, § 3, 9-7-2021)
The following general development standards apply to building sites in the city:
A.
Substandard Lot Sizes. A legally created lot that contains less area than is required by the applicable district and is not merged pursuant to the state Subdivision Map Act and/or local ordinance, shall be considered a building site if one of the following criteria is met:
1.
All other development standards of the district in which the lot is located and all other applicable city development standards, except lot size, are met; or
2.
A variance is approved for the building.
B.
Gross Versus Net Acreage. Building sites of two acres or more shall be determined by reference to gross acreage. Building sites of less than two acres shall be determined by reference to net acreage.
C.
Exception—Public Uses. The minimum building site required in any district shall not apply to lots created for a public use or public utility for which a use permit is required.
D.
Exception—Preexisting Residences. Lots containing two or more detached one-family residences or mobile homes may be divided into lots smaller than permitted by the district in which the property is located provided:
1.
All such habitable one-family residences or mobile homes were legally constructed or installed before January 10, 1984; and
2.
Each newly created parcel is occupied by at least one of the one-family residences or mobile homes; and
3.
Each newly created parcel meets all city development standards, except minimum building site.
(Ord. 97-99 § 1 (part))
A.
General. The regulations for yards shall apply in all districts unless different yards are shown on a recorded parcel map or final map. Except as otherwise provided herein, no building or structure shall be permitted within any required yard area.
B.
Measurement from Roads. Yards, except as otherwise provided herein, shall be measured from existing property lines, or road right-of-way lines if the property lines are within a road right-of-way, except that lots fronting on roads designated in the city general plan as either an arterial or collector shall meet one of the following ultimate right-of-way criteria:
1.
If a plan line has been established for any street, as provided for in Section 17.92.070 of this title, required yards shall be measured from such line.
2.
If no plan line exists, the yard shall extend from the centerline of the road and shall extend a distance equal to one-half the distance of the ultimate right-of-way, as designated in the general plan, plus the yard required by the appropriate district.
C.
Preexisting Buildings. Buildings which existed before the effective date of this chapter and which do not comply with all of the yard requirements of the district in which they are located or as provided in this chapter, may be enlarged or modified, provided the proposed modification or expansion conforms to all applicable yard, lot coverage and other permit requirements.
D.
Residential Main Buildings.
1.
Preexisting Lots. For preexisting lots in districts which permit residential and accessory uses and have a minimum building site of two acres or larger, the minimum building setback for lots that are smaller than two net acres shall be as follows: (Note: city fire safety standards may require additional building setbacks for lots as small as one acre in size.)
a.
Front, twenty (20) feet;
b.
Side, twelve (12) feet on one side and five feet on the other side;
c.
Rear, ten feet.
2.
Architectural Features. Cornices, eaves, canopies and similar architectural features may extend into any required yard not more than two and one-half feet.
3.
Structural Appendages. Uncovered porches, stairways, fire escapes or landing places may extend into any required front or rear yard not more than six feet, and into any required side yard not more than three feet.
4.
Dwellings Facing Side Yards. A dwelling which is to be located with the main entrance facing any side property line shall have a minimum ten-foot side yard on the main entrance side.
5.
Corner/Key Lots. For corner/key lot situations, the required street side yard of the corner lot shall be as follows:
a.
Within twenty-five (25) feet of the side line of the key lot, the side yard shall be equal to the front yard required on the key lot; and
b.
Beyond twenty-five (25) feet on the side line of the key lot, the side yard shall be fifty (50) percent of the front yard required on the key lot.
6.
Flag Lots. Front yards on flag lots shall be located on either the side in which the property line is a continuation of the driveway lot line or the lot line nearest and perpendicular to the driveway.
E.
Residential Accessory Buildings.
1.
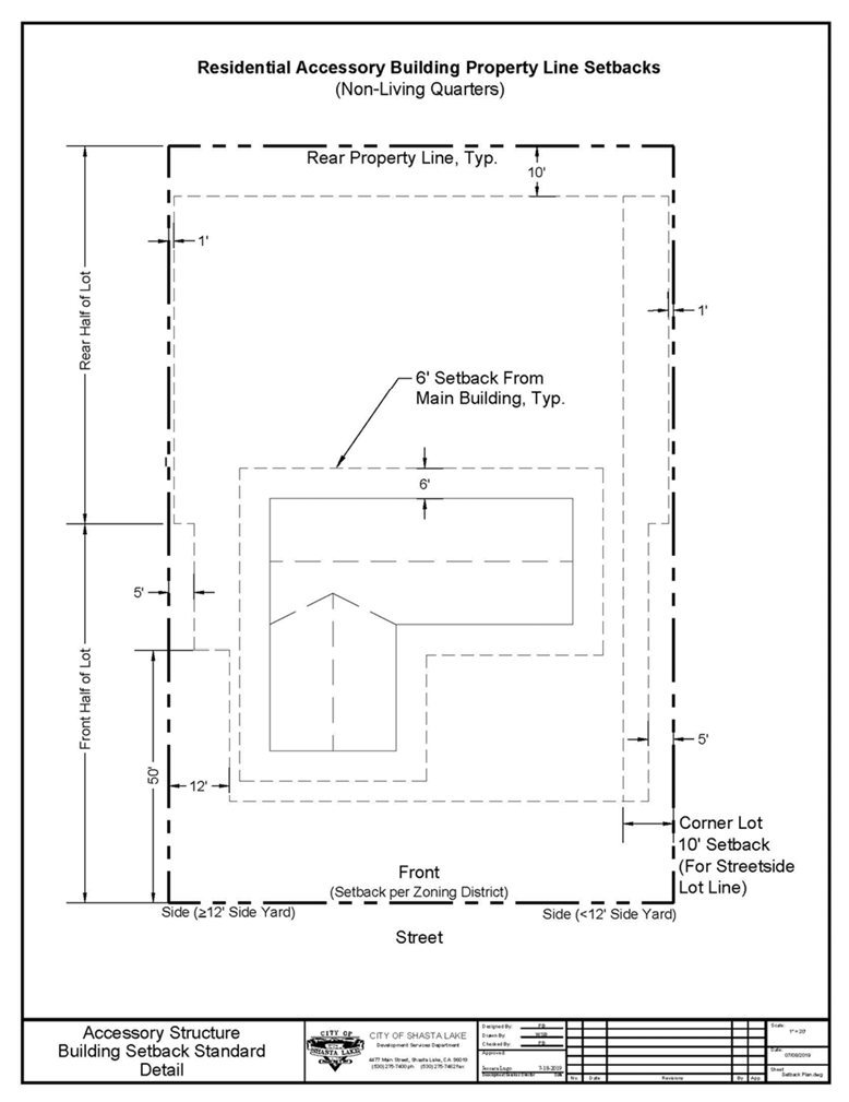
Distance from Main Buildings. Detached accessory buildings shall be at least six feet from the main buildings.
2.
Front Yard. Detached accessory buildings shall not encroach upon a front yard, unless otherwise provided for herein.
3.
Garages on Street Side Yards. If an attached or detached garage faces a street side yard, the minimum street side yard shall be twenty (20) feet.
4.
Agricultural Buildings. Where allowed, barns, stables, chicken houses and similar agricultural and residential accessory buildings that house animals shall not be closer than fifty (50) feet from the front property line or road right-of-way line, ten feet from side and rear property lines, and twenty (20) feet from any dwelling unit on the same or adjacent property.
5.
Nonliving Quarters. Accessory buildings not used for human habitation or the keeping of animals shall be at least five feet from the interior side lot line on the front half of the lot and one foot from an interior side lot line on the rear half of the lot, except interior residential lots in which a twelve-foot or wider side yard is required, no accessory buildings or structures which are subject to issuance of a building permit shall be permitted within one twelve-foot side yard for the front fifty (50) feet of that side yard. Said buildings shall be at least ten feet from the rear property line. On corner lots, accessory buildings and structures shall be at least ten feet from street side lot lines. The same standards shall apply to swimming pools with the exception that the setback from the rear property line may be reduced to five feet; however, under no circumstance shall an in-ground swimming pool be placed so near any property line that the vertical or lateral support of adjacent properties would be affected.
6.
Exception—Topography. Notwithstanding any other provisions of this chapter, if the elevation of the front half of a lot at fifty (50) feet from the centerline of the traveled roadway is seven feet above or below the grade of the centerline, a private garage, attached or detached, may be built to a minimum of five feet from the front line of the lot, if the lot is smaller than two acres.
(Ord. 97-99 § 1 (part); Ord. No. 19-275, § 2(Exh. A), 9-3-2019; Ord. No. 22-293, § II, 5-17-2022)
The following general height regulations apply:
A.
Fences. The following shall apply, unless otherwise provided:
1.
The height of any fence, wall, hedge, screen, planting or other dividing structure placed, grown or maintained in any residential or commercial district shall not exceed three feet within any required front yard or within any side yard on the street side of a corner lot, except as provided in subsection (A)(3) of this section.
2.
The height of any fence, wall or other dividing structure placed in any residential district shall not exceed seven feet in any rear yard, or in any required side yard not subject to subsection A.1 of this section, except as provided in subsection A.3. A fence may exceed this height limit if a use permit is first secured.
3.
The height limits of this subsection do not apply to open wire fencing material used as a fence or dividing structure or placed atop any fence, wall or other dividing structure.
B.
Height Exceptions. The following exceptions apply to height regulations:
1.
Roof Structure. Roof structures for the housing of elevators, stairways, tanks, ventilating fans, solar equipment or similar equipment required to operate and maintain the building, and fire or parapet walls, skylights, towers, flagpoles, chimneys, smokestacks, wireless masts, radio and television antennas or similar structures may be erected above the height limits specified in this title, but no roof structure or any space above the height limit shall be allowed for the purpose of providing additional floor space.
2.
Slope. Where the average grade under any dwelling exceeds fifteen (15) percent, the maximum height limit shall be increased by fifteen (15) feet on the downhill side of the building.
3.
Transmission Lines. Height limitations provided in this title shall not apply to electric transmission lines or towers.
4.
Use Permit. Except as otherwise provided in this section, any structure, building or fence in any district may be erected to a greater height or number of stories than the limit established for the district in which the structure is to be located, provided that a use permit is issued.
C.
Fire Safety. Whenever the lowest portion of the roof is greater than twenty (20) feet from the ground, roof access for fire safety shall be provided as required by the local fire authority.
(Ord. 97-99 § 1 (part); Ord. No. 19-275, § 2(Exh. D), 9-3-2019)
The following general landscaping requirements apply:
A.
Areas Requiring Landscaping.
1.
Parking Areas. Open parking areas containing five or more required vehicle spaces which abut a public street shall be landscaped to a depth of ten feet, measured from the abutting street right-of-way line, with openings for walkway and/or driveway purposes, in accordance with city standards.
2.
Large Parking Areas. Open parking areas, excluding underground or structural parking, which contain twenty (20) or more spaces, shall landscape a minimum of five percent of the gross lot area used for offstreet parking and access thereto, exclusive of any landscaped strip abutting the street right-of-way or area used for walkways or driveways. This required landscaping shall include one tree, of a species suited to the area climate zone, for every eight parking spaces.
3.
Parking Next to Residential Areas. A minimum three-foot-wide landscaped strip shall be planted and maintained along the edge of parking areas that abut residential districts. This shall be counted as a part of the five percent landscaped area described in subsection (A)(2) of this section, if applicable.
4.
Commercial Industrial and Multi-Family Yard Areas. For commercial, industrial or multifamily residential uses, required yards adjoining public streets shall be landscaped to a depth of ten feet.
5.
Adjacent to Freeways. A use in a commercial or industrial district whose side or rear yard abuts a freeway right-of-way shall have a ten-foot-wide screened landscaped area shall include trees planted on forty (40) feet on center spaces, with a minimum of three trees.
B.
Landscaping Materials. Required landscaping may consist of a combination of plant and nonplant material, provided no less than fifty (50) percent of the required landscaped area shall be living plant material, based on mature plant size.
C.
Watering. All required planted areas shall be served with adequate and permanent watering systems, except where native plants that do not need a watering system are used. All plants shall be maintained in a living condition.
D.
Border Materials. Except where abutting a sidewalk, all required landscaped areas shall be enclosed by either a concrete curb having a minimum height of six inches or a wooden frame constructed from materials such as railroad ties or other heavy lumber materials which measure no less than six inches in diameter.
E.
Maintenance. All required landscaped areas shall be maintained in a neat and clean condition.
F.
Sight Distance. In order to provide safe sight distance at driveways and street intersections, all plant material within a thirty (30) foot triangle at the intersection of streets, and a fifteen (15) foot triangle at the intersection of driveways and streets, shall be no more than two feet in height above the curb level, except for trees which are trimmed so that no branches extend lower than six feet above curb level.
G.
Exception. Any portion of this section may be modified if a use permit is obtained.
H.
Landscaping Plan. All landscaping required by this section shall be installed and maintained in accordance with a landscaping plan. The plan shall be submitted to and approved by the development services director or his or her designee prior to issuance of a building permit or use permit, and shall show the location, size and variety of all plantings, water supply and other pertinent improvements. This plan may be combined with a parking plan.
(Ord. 97-99 § 1 (part))
All lighting, exterior and interior, shall be designed and located so as to confine direct lighting to the premises. A light source shall not shine upon or illuminate directly on any surface other than the area required to be lighted. No lighting shall be of the type or in a location such that constitutes a hazard to vehicular traffic, either on private property or on abutting streets.
(Ord. 97-99 § 1 (part))
In addition to the sign requirements specified in individual districts, the following shall also apply:
A.
Under-Canopy Signs. In a shopping center, an under-canopy sign may be permitted for each business; provided it shall not exceed five feet in length or one foot in height. Under-canopy signs shall be located perpendicular to the face of the building under the canopy, and shall have an eight-foot clearance between the bottom of the sign and the sidewalk or other pedestrian way.
B.
Window Signs. Window signs may be permitted in any commercial or industrial district if the signs are place entirely within the building and do not cover more than twenty (20) percent of the window area of the ground floor. None shall be permitted above the ground floor.
C.
Gasoline Price Signs. Gasoline price signs shall be allowed on freestanding signs if made integral with the design of the freestanding sign.
D.
Sign Area. Sign area shall include the sum of the area enclosed within a geometric form or forms drawn around all writing, representations, emblems or designs on all surfaces of the sign which contain or is designed to contain the advertising.
E.
Color and Lighting.
1.
No blinking, flashing, rotating or animated signs, or signs that change color or intensity or emit odors, fluids, noise, smoke, etc., shall be permitted on the exterior of any building, except to display time, date or weather information.
2.
Lights used to illuminate signs or advertising structures shall be installed so as to concentrate the illumination on the sign or advertising structure and minimize glare or direct illumination upon a public street or adjacent property.
3.
No red, green or amber lights or illuminated signs may be placed in such positions that they could reasonably be expected to interfere with or be confused with an official traffic control device or traffic signal or official directional guide signs.
F.
Placement on Buildings.
1.
Roof signs shall not be permitted in any zone.
2.
All building signs projecting more than twelve (12) inches from the building face, wall or canopy upon which it is displayed shall have at least eight feet of clearance between the sign and the ground.
G.
Locational Requirements.
1.
There shall be no lighted, freestanding sign within fifty (50) feet of a residential district.
2.
No sign shall be permitted in or over a public right-of-way or any driveway or walkway, except signs constructed on the face of a building that is located on the property line and parallel to such a right-of-way may project over such right-of-way a maximum of twelve (12) inches. Any such sign shall have a minimum vertical clearance of eight feet above such right-of-way, driveway or walkway.
H.
Exceptions. Exceptions may be made to the size, height, location and numbers of signs as specified in any district, or this section, if a use permit is issued. The burden of proof to justify an exception shall be on the applicant to demonstrate that practical difficulties or hardships would otherwise be caused, and the exception applied for is the most suitable and effective in relation to the location or terrain of the site or from the standpoint of the intended viewer.
I.
Electronic readerboard signs shall be allowed pursuant to the provisions of Section 17.88.095 of this title.
(Ord. 97-99 § 1 (part))
(Ord. No. 12-227, § 1(1), 8-7-2012)
Requirements for zone walls are as follows:
A.
Urban Areas. A use proposed in a commercial (C) or industrial (I) district that abuts an R-1, R-M, R-2, R-3 or MHP district, or a proposed multiple-family residential use that abuts an R-1 district, shall have a solid masonry concrete wall or planted berm six feet in height, constructed along the rear and/or interior side lot line, except for the twenty (20) feet nearest the front lot line, the wall or berm shall be only three feet high.
B.
Rural Areas. For a use proposed in a commercial (C) or industrial (I) district that abuts a resource district or an R-R or R-L district, or a proposed commercial or light industrial use in an MU district that abuts a resource or residential district, a screened cyclone fence may be substituted for the block wall or berm.
C.
Unclassified District. If a proposed commercial or industrial use or abutting property is in a U district, the criteria of subsections A and B shall be applied, as appropriate.
D.
Height Measurement and Location. The height of the wall, berm or fence shall be deter-mined by the vertical distance measured from the top of the wall, berm or fence to the lowest point within three feet of the wall, berm or fence on the commercial or industrial property. The wall, berm or fence shall be constructed on or immediately adjacent to the line dividing the residential and commercial or industrial properties.
E.
Exceptions. If a use permit is issued, exceptions to the zone wall regulations may be made, in whole or part, if it is found that there is a topographic or natural vegetative barrier that will serve to divide the potentially incompatible uses, or if there is a significant distance between the uses that will pro-vide the same buffering.
(Ord. 97-99 § 1 (part))
All new construction of residential, commercial or industrial buildings shall have primary access from an existing paved street. The standards for street construction and exceptions shall be as follows:
A.
General Requirements.
1.
If the street paving existed prior to the effective date of the ordinance codified in this title, the construction standard may be chip seal or asphalt paving. The existing road shall meet at mini-mum the fire safety standards.
2.
If the street is paved after the effective date of the ordinance codified in this title, it shall be constructed to city development standards for paved streets.
3.
Development of any vacant parcel shall be served by a road that meets at minimum the fire safety standards.
B.
Exceptions.
1.
In lieu of paving, the city council may permit the developer to pay a dust mitigation fee. The amount of said dust mitigation fee to be determined by the city council.
A fund shall be established in the city treasury and all dust mitigation fees shall be deposited in said fund. Policies and procedures for expenditure of money in the fund shall be established by the city council. The funds shall be used for paving of city streets, including seed money needed to design and start assessment proceedings for the paving of streets.
2.
The owner shall sign a deferred improvement agreement by which the owner agrees to participate in an assessment district formed to provide a paved road. Said agreement shall be recorded and shall run with the land, and obligates any owner, heirs, successors, or assigns. When sixty (60) percent or more of the owners within a block have signed a deferred improvement agreement, the city council shall call up said agreements and require the paving of said road.
3.
Existing conforming and nonconforming residential structures which do not have frontage on a paved street may be replaced provided the new structure is not more than ten percent larger than the existing floor area and the property owner signs a deferred improvement agreement to participate in the paving at a future date as determined by the city council. Any dwelling replaced shall meet all other standards of the city code and shall comply with Sections 17.30.020A and B of this title. Any replaced structure larger than ten percent may be permitted provided the owner pays a dust mitigation fee as provided for in subsection A of this section.
4.
Conforming structures on parcels not fronting on a paved street may be enlarged up to ten percent of the existing floor area, and accessory buildings not exceeding five hundred (500) square feet may be constructed provided the owner signs a deferred improvement agreement to participate in the paving at a future date as determined by the city council. Any enlarged structure larger than ten percent may be permitted provided the owner pays a dust mitigation fee as provided for in subsection A of this section.
(Ord. 97-99 § 1 (part))
Manufactured homes are allowed in all zoning districts which permit one-family residences and shall be subject to the following development standards:
1.
All manufactured homes shall be placed on a permanent foundation system of state-approved design or a permanent foundation system designed by a licensed architect or structural engineer as required by Section 65852.3 of the State of California Government Code;
2.
The manufactured home shall be certified under the National Mobile Home Construction and Safety Standards Act of 1974;
3.
Manufactured homes placed on a foundation system shall not be older than ten years of age measured from the date of manufacture of the unit to the date of building permit application except that manufactured homes lawfully installed prior to the effective date of this ordinance which have been certified under the National Manufactured Home Construction and Safety Act of 1974 shall be exempt from the ten-year age standard;
4.
Manufactured homes shall provide parking in accordance with Section 17.30.060 and Chapter 17.86. The exterior wall covering and roof material of any required garage or carport shall be the same as those of the manufactured home;
5.
Requirements for building height, lot coverage, side yard setbacks, front yard setbacks, rear yard setbacks, and usable open space shall be subject to the same requirements as the zone in which the manufactured home is located;
6.
Exterior wall covering materials and roofing materials shall conform to the requirements of the State of California Department of Housing and Community Development (HCD) and the uniform building code for frame constructed dwellings. Exterior wall coverings shall extend (at a minimum) to the top of the perimeter foundation.
7.
A foundation enclosure shall be installed between the finish grade and the siding material. Add-on siding needed to extend the exterior siding to the foundation enclosure shall consist of materials similar to the main exterior siding. Venting per the uniform building code shall be required.
8.
All roof and gable overhangs shall extend not less than six inches when measured horizontally from the wall. Roof and gable overhangs shall be manufactured or engineered and designed to appear as an integral part of the manufactured home;
9.
The roof of the manufactured home shall have a minimum pitch of not less than a nominal three inches of vertical rise for each twelve (12) inches of horizontal run;
10.
Roof design shall meet the snow load requirements of the city of Shasta Lake, and roofing materials shall meet the requirements of a Class A or B fire rating as defined by the currently adopted uniform building code.
11.
No ramada or other free-standing structure shall be allowed to be constructed over a manufactured home.
(Ord. 02-146 § 1)
84 - GENERAL DEVELOPMENT STANDARDS
A.
Purpose and Use.
The purpose of this chapter is to define general design objectives for new commercial, industrial, residential, and public development projects, in order to assist site planners and designers in understanding the city's basic design expectations for on-site development. These guidelines should also be applied as feasible to enhance existing structures or site conditions. The intent is to enhance the community's overall value and appearance, and to achieve well-designed projects that complement the small-town feel of the community and its heritage. In addition, these design objectives are intended to:
1.
Encourage originality, flexibility, innovation in site planning and development, including the architecture, landscaping and design of proposed developments in relation to the city as a whole and/or surrounding areas.
2.
Discourage monotonous, drab, unsightly, dreary and inharmonious developments, minimize discordant and unsightly surroundings and visual blight, and avoid inappropriate and poor quality design.
3.
Aid in assuring that structures, signs and other improvements are properly related to their sites and the surrounding sites and structures, with due regard to the aesthetic qualities of the natural terrain and landscaping and that proper attention is given to exterior appearances of structures, signs and other improvements.
These objectives shall be considered during the design and review of development proposals, and are to be used in conjunction with other applicable zoning development standards, ordinances and/or special development requirements. In the event that a general design objective conflicts with a specific standard of other ordinances or codes, the specific standard shall prevail.
The design criteria established in this section are not intended to be rigid or restrict creative solutions. The planning commission, at its discretion, shall have the authority to consider and accept alternative site and/or building designs that are determined to meet the general intent of this chapter.
B.
Site Design Objectives.
1.
Sites should be developed in a coordinated manner to complement adjacent structures through placement, architecture, colors and size/mass.
2.
Whenever possible, buildings on the same site should be clustered and incorporate plazas, court-yards, pocket parks and other pedestrian use areas.
3.
Sites should be designed to avoid the appearance of domination by automobiles. Positive methods to achieve this concept include:
a.
Orienting buildings to fronting streets and placing parking at the rear and/or sides;
b.
Designing the required parking area into smaller, discrete, connected lots rather than large, single-use lots;
c.
Providing well-defined pedestrian walkways through parking areas and from public sidewalks into the site. Well-defined walkways use pavers, changes in color, texture and composition of paving materials and vertical plantings such as trees and shrubs. The minimum width of walkways shall be five feet.
d.
Parking areas shall be designed to be partially screened from view from adjacent streets and building occupants. Screening can be accomplished through a number of methods, including:
i.
Orienting buildings away from parking areas;
ii.
Placing buildings between streets and parking lots;
iii.
Using extensive landscape screening, beams, and architecturally treated walls.
4.
Sites shall incorporate transit-compatible designs where appropriate. Transit compatibility means designs that are pedestrian oriented, provide safe and convenient access to transit facilities, and foster efficient transit service.
5.
Where appropriate, site plans shall be designed to provide vehicle and pedestrian connections with adjacent sites.
6.
All utility lines should be placed underground onsite and along street frontages.
7.
Phased projects shall be designed to the greatest degree possible so that each phase, in and of itself, is complete in its functional, traffic, parking, visual, drainage and landscaping aspects.
C.
Building Design Objectives.
1.
No single architectural style is required. How-ever, design themes that reflect the city's small-town atmosphere, and its natural resource and recreation-based heritage, are preferred. Such design themes typically include use of stone, heavy timbers, other natural appearing materials and colors in the building, and overall site design. Building accents which relate to the community's origin in the late 1930's and 1940's are also encouraged. Reliance on or use of standardized "corporate or franchise" design prototypes that are more representative of typical urban development is strongly discouraged.
2.
Buildings should reflect an individual design that has considered site location, conditions, and surrounding development. Building design should pro-vide a sense of permanence and timelessness. High quality construction and materials should be used to ensure that buildings will not look dated or worn down over time. Building designs should reflect an individual style and form and not merely current trends.
3.
A consistent visual identity shall be applied to all sides of buildings visible to the general public. In these areas, all building sides shall have an equivalent level of quality of materials, detailing and window placement. Abrupt ending of architectural details shall be avoided with no radical change in details or features or materials.
4.
Long blank walls are to be avoided. Positive methods to achieve this objective include change in colors and materials, placement of windows, use of awnings and canopies, and architectural details and features such as corners, setbacks, and offsets. Windows at ground level may be tinted; however, mirrored windows are not allowed. Reflective roofing is not allowed.
5.
Buildings facing streets shall incorporate pedestrian scaled entrances. Pedestrian scaled en-trances are those that provide an expression of human activity or use in relation to building size. Doors, windows, entrances and other features should be designed to respond to the size of the human body and not give the appearance of anonymity or over-whelming the building's users.
6.
Modulation (defined as a measured setback or offset in a building face) shall be incorporated to re-duce overall bulk and mass of buildings. The planes of exterior walls should not run in one continuous direction more than fifty (50) to sixty (60) feet without an offset or setback.
7.
Large buildings should have height variations to give the appearance of distinct elements.
8.
Building design and/or facade shall incorporate traditional building materials such as masonry, stone, heavy timbers, brick and other natural appearing materials.
9.
Building colors and roof materials should accent, blend with, or complement surroundings. Bright or brilliant colors should be reserved for trim and accents.
10.
Existing buildings that have faded exterior color(s), and/or that have generally a worn or weathered appearance, should be repainted prior to establishment of any new uses.
11.
Landscape areas or planting beds should be provided around perimeters to separate buildings from surrounding pavement areas.
12.
Outdoor storage areas, mechanical equipment, utility vaults, and trash receptacles must not be visible from adjacent streets and pedestrian walkways.
13.
Outdoor mechanical equipment shall be appropriately screened from view and to minimize noise. The method of screening shall be architecturally integrated with the building with respect to materials, color, shape and size.
14.
Site services should be located on the least visible side of a building or site or within interior building spaces.
15.
Ground level outdoor enclosures shall be composed of materials similar to the main structure.
16.
Materials used for site features such as fences, screen walls, and signs should be appropriate to the zone district where the development is located and should complement building design through materials, color, shape, and size.
17.
Developments should provide transition with adjacent uses especially regarding building location, size and scale. No single building or development should dominate adjacent uses in terms of size, bulk, view blockage, or shading.
D.
Sign Objectives.
1.
Building Signs.
a.
Individual letters rather than cabinet signs are preferred.
b.
Backlit individual letters are a preferred alternative.
c.
Signs should be compatible in scale and proportion with building design and other signs.
d.
A specific sign program or concept should be designed for multiple tenant buildings or complexes. Color and letter style shall be coordinated when businesses share the same building and consistent sign patterns (placement on buildings) shall be utilized.
e.
Exposed neon tubes are acceptable for non-letter sign elements but are discouraged for letters.
2.
Freestanding Signs.
a.
Freestanding signs should provide only name and address of the building and/or building tenants.
b.
Project landscaping should be designed to incorporate freestanding signs.
E.
Landscaping Objectives
1.
Provide unity of design through repetition of plants and coordination with adjacent developments.
2.
Landscape materials should be hardy species that are adaptable to local conditions, easily maintained, and drought tolerant. Use of native plants is strongly encouraged.
3.
The design for parking areas shall include deciduous and evergreen trees to provide shade and break up expanses of asphalt.
4.
Landscape islands or medians shall have no dimension narrower than four to five feet.
5.
Interior landscaping is required for parking lots containing ten or more spaces at a ratio of twenty (20) square feet of landscape area for every one hundred (100) square feet of parking area. All landscaped areas should be protected by wheelstops or curbing, or be of sufficient width to prevent damage to plants by overhanging vehicles.
6.
Existing vegetation should be incorporated into overall site design.
7.
Landscaped areas shall be irrigated by mechanical sprinkler systems. Reclaimed water should be used in the irrigation system if practicable.
8.
Required perimeter setback areas shall be densely landscaped with a combination of trees and shrubs, which form a ninety (90) percent ground cover within three years of planting.
9.
Interior site landscaping is required to define pedestrian ways, enclose outdoor gathering and seating areas, and reduce building mass.
10.
Architectural features such as low walls, fountains and sculptures may be used in places where planting areas are limited or restricted.
11.
Project entrances should be enhanced through changes in paving materials such as brick payers, textured and colored concrete, providing entry structures and unity in planting of trees and shrubs.
12.
Individual trees along walkways and along sidewalks in the internal portions of projects should be planted in tree wells or planter boxes.
13.
Open stormwater detention facilities should be incorporated into project landscaping and open space where geographically feasible.
14.
Open stormwater detention facilities shall be landscaped and visually screened.
F.
Lighting Objectives
1.
Moving and flashing lights are prohibited.
2.
Use cut-off lenses or hoods to prevent glare and light spill off project site onto adjacent properties, buildings and roadways.
3.
Lighting standards should be designed and sized to be compatible with the character of the development.
(Ord. 01-136 § 1)
(Ord. No. 21-290, § 3, 9-7-2021)
The following general development standards apply to building sites in the city:
A.
Substandard Lot Sizes. A legally created lot that contains less area than is required by the applicable district and is not merged pursuant to the state Subdivision Map Act and/or local ordinance, shall be considered a building site if one of the following criteria is met:
1.
All other development standards of the district in which the lot is located and all other applicable city development standards, except lot size, are met; or
2.
A variance is approved for the building.
B.
Gross Versus Net Acreage. Building sites of two acres or more shall be determined by reference to gross acreage. Building sites of less than two acres shall be determined by reference to net acreage.
C.
Exception—Public Uses. The minimum building site required in any district shall not apply to lots created for a public use or public utility for which a use permit is required.
D.
Exception—Preexisting Residences. Lots containing two or more detached one-family residences or mobile homes may be divided into lots smaller than permitted by the district in which the property is located provided:
1.
All such habitable one-family residences or mobile homes were legally constructed or installed before January 10, 1984; and
2.
Each newly created parcel is occupied by at least one of the one-family residences or mobile homes; and
3.
Each newly created parcel meets all city development standards, except minimum building site.
(Ord. 97-99 § 1 (part))
A.
General. The regulations for yards shall apply in all districts unless different yards are shown on a recorded parcel map or final map. Except as otherwise provided herein, no building or structure shall be permitted within any required yard area.
B.
Measurement from Roads. Yards, except as otherwise provided herein, shall be measured from existing property lines, or road right-of-way lines if the property lines are within a road right-of-way, except that lots fronting on roads designated in the city general plan as either an arterial or collector shall meet one of the following ultimate right-of-way criteria:
1.
If a plan line has been established for any street, as provided for in Section 17.92.070 of this title, required yards shall be measured from such line.
2.
If no plan line exists, the yard shall extend from the centerline of the road and shall extend a distance equal to one-half the distance of the ultimate right-of-way, as designated in the general plan, plus the yard required by the appropriate district.
C.
Preexisting Buildings. Buildings which existed before the effective date of this chapter and which do not comply with all of the yard requirements of the district in which they are located or as provided in this chapter, may be enlarged or modified, provided the proposed modification or expansion conforms to all applicable yard, lot coverage and other permit requirements.
D.
Residential Main Buildings.
1.
Preexisting Lots. For preexisting lots in districts which permit residential and accessory uses and have a minimum building site of two acres or larger, the minimum building setback for lots that are smaller than two net acres shall be as follows: (Note: city fire safety standards may require additional building setbacks for lots as small as one acre in size.)
a.
Front, twenty (20) feet;
b.
Side, twelve (12) feet on one side and five feet on the other side;
c.
Rear, ten feet.
2.
Architectural Features. Cornices, eaves, canopies and similar architectural features may extend into any required yard not more than two and one-half feet.
3.
Structural Appendages. Uncovered porches, stairways, fire escapes or landing places may extend into any required front or rear yard not more than six feet, and into any required side yard not more than three feet.
4.
Dwellings Facing Side Yards. A dwelling which is to be located with the main entrance facing any side property line shall have a minimum ten-foot side yard on the main entrance side.
5.
Corner/Key Lots. For corner/key lot situations, the required street side yard of the corner lot shall be as follows:
a.
Within twenty-five (25) feet of the side line of the key lot, the side yard shall be equal to the front yard required on the key lot; and
b.
Beyond twenty-five (25) feet on the side line of the key lot, the side yard shall be fifty (50) percent of the front yard required on the key lot.
6.
Flag Lots. Front yards on flag lots shall be located on either the side in which the property line is a continuation of the driveway lot line or the lot line nearest and perpendicular to the driveway.
E.
Residential Accessory Buildings.
1.
Distance from Main Buildings. Detached accessory buildings shall be at least six feet from the main buildings.
2.
Front Yard. Detached accessory buildings shall not encroach upon a front yard, unless otherwise provided for herein.
3.
Garages on Street Side Yards. If an attached or detached garage faces a street side yard, the minimum street side yard shall be twenty (20) feet.
4.
Agricultural Buildings. Where allowed, barns, stables, chicken houses and similar agricultural and residential accessory buildings that house animals shall not be closer than fifty (50) feet from the front property line or road right-of-way line, ten feet from side and rear property lines, and twenty (20) feet from any dwelling unit on the same or adjacent property.
5.
Nonliving Quarters. Accessory buildings not used for human habitation or the keeping of animals shall be at least five feet from the interior side lot line on the front half of the lot and one foot from an interior side lot line on the rear half of the lot, except interior residential lots in which a twelve-foot or wider side yard is required, no accessory buildings or structures which are subject to issuance of a building permit shall be permitted within one twelve-foot side yard for the front fifty (50) feet of that side yard. Said buildings shall be at least ten feet from the rear property line. On corner lots, accessory buildings and structures shall be at least ten feet from street side lot lines. The same standards shall apply to swimming pools with the exception that the setback from the rear property line may be reduced to five feet; however, under no circumstance shall an in-ground swimming pool be placed so near any property line that the vertical or lateral support of adjacent properties would be affected.
6.
Exception—Topography. Notwithstanding any other provisions of this chapter, if the elevation of the front half of a lot at fifty (50) feet from the centerline of the traveled roadway is seven feet above or below the grade of the centerline, a private garage, attached or detached, may be built to a minimum of five feet from the front line of the lot, if the lot is smaller than two acres.
(Ord. 97-99 § 1 (part); Ord. No. 19-275, § 2(Exh. A), 9-3-2019; Ord. No. 22-293, § II, 5-17-2022)
The following general height regulations apply:
A.
Fences. The following shall apply, unless otherwise provided:
1.
The height of any fence, wall, hedge, screen, planting or other dividing structure placed, grown or maintained in any residential or commercial district shall not exceed three feet within any required front yard or within any side yard on the street side of a corner lot, except as provided in subsection (A)(3) of this section.
2.
The height of any fence, wall or other dividing structure placed in any residential district shall not exceed seven feet in any rear yard, or in any required side yard not subject to subsection A.1 of this section, except as provided in subsection A.3. A fence may exceed this height limit if a use permit is first secured.
3.
The height limits of this subsection do not apply to open wire fencing material used as a fence or dividing structure or placed atop any fence, wall or other dividing structure.
B.
Height Exceptions. The following exceptions apply to height regulations:
1.
Roof Structure. Roof structures for the housing of elevators, stairways, tanks, ventilating fans, solar equipment or similar equipment required to operate and maintain the building, and fire or parapet walls, skylights, towers, flagpoles, chimneys, smokestacks, wireless masts, radio and television antennas or similar structures may be erected above the height limits specified in this title, but no roof structure or any space above the height limit shall be allowed for the purpose of providing additional floor space.
2.
Slope. Where the average grade under any dwelling exceeds fifteen (15) percent, the maximum height limit shall be increased by fifteen (15) feet on the downhill side of the building.
3.
Transmission Lines. Height limitations provided in this title shall not apply to electric transmission lines or towers.
4.
Use Permit. Except as otherwise provided in this section, any structure, building or fence in any district may be erected to a greater height or number of stories than the limit established for the district in which the structure is to be located, provided that a use permit is issued.
C.
Fire Safety. Whenever the lowest portion of the roof is greater than twenty (20) feet from the ground, roof access for fire safety shall be provided as required by the local fire authority.
(Ord. 97-99 § 1 (part); Ord. No. 19-275, § 2(Exh. D), 9-3-2019)
The following general landscaping requirements apply:
A.
Areas Requiring Landscaping.
1.
Parking Areas. Open parking areas containing five or more required vehicle spaces which abut a public street shall be landscaped to a depth of ten feet, measured from the abutting street right-of-way line, with openings for walkway and/or driveway purposes, in accordance with city standards.
2.
Large Parking Areas. Open parking areas, excluding underground or structural parking, which contain twenty (20) or more spaces, shall landscape a minimum of five percent of the gross lot area used for offstreet parking and access thereto, exclusive of any landscaped strip abutting the street right-of-way or area used for walkways or driveways. This required landscaping shall include one tree, of a species suited to the area climate zone, for every eight parking spaces.
3.
Parking Next to Residential Areas. A minimum three-foot-wide landscaped strip shall be planted and maintained along the edge of parking areas that abut residential districts. This shall be counted as a part of the five percent landscaped area described in subsection (A)(2) of this section, if applicable.
4.
Commercial Industrial and Multi-Family Yard Areas. For commercial, industrial or multifamily residential uses, required yards adjoining public streets shall be landscaped to a depth of ten feet.
5.
Adjacent to Freeways. A use in a commercial or industrial district whose side or rear yard abuts a freeway right-of-way shall have a ten-foot-wide screened landscaped area shall include trees planted on forty (40) feet on center spaces, with a minimum of three trees.
B.
Landscaping Materials. Required landscaping may consist of a combination of plant and nonplant material, provided no less than fifty (50) percent of the required landscaped area shall be living plant material, based on mature plant size.
C.
Watering. All required planted areas shall be served with adequate and permanent watering systems, except where native plants that do not need a watering system are used. All plants shall be maintained in a living condition.
D.
Border Materials. Except where abutting a sidewalk, all required landscaped areas shall be enclosed by either a concrete curb having a minimum height of six inches or a wooden frame constructed from materials such as railroad ties or other heavy lumber materials which measure no less than six inches in diameter.
E.
Maintenance. All required landscaped areas shall be maintained in a neat and clean condition.
F.
Sight Distance. In order to provide safe sight distance at driveways and street intersections, all plant material within a thirty (30) foot triangle at the intersection of streets, and a fifteen (15) foot triangle at the intersection of driveways and streets, shall be no more than two feet in height above the curb level, except for trees which are trimmed so that no branches extend lower than six feet above curb level.
G.
Exception. Any portion of this section may be modified if a use permit is obtained.
H.
Landscaping Plan. All landscaping required by this section shall be installed and maintained in accordance with a landscaping plan. The plan shall be submitted to and approved by the development services director or his or her designee prior to issuance of a building permit or use permit, and shall show the location, size and variety of all plantings, water supply and other pertinent improvements. This plan may be combined with a parking plan.
(Ord. 97-99 § 1 (part))
All lighting, exterior and interior, shall be designed and located so as to confine direct lighting to the premises. A light source shall not shine upon or illuminate directly on any surface other than the area required to be lighted. No lighting shall be of the type or in a location such that constitutes a hazard to vehicular traffic, either on private property or on abutting streets.
(Ord. 97-99 § 1 (part))
In addition to the sign requirements specified in individual districts, the following shall also apply:
A.
Under-Canopy Signs. In a shopping center, an under-canopy sign may be permitted for each business; provided it shall not exceed five feet in length or one foot in height. Under-canopy signs shall be located perpendicular to the face of the building under the canopy, and shall have an eight-foot clearance between the bottom of the sign and the sidewalk or other pedestrian way.
B.
Window Signs. Window signs may be permitted in any commercial or industrial district if the signs are place entirely within the building and do not cover more than twenty (20) percent of the window area of the ground floor. None shall be permitted above the ground floor.
C.
Gasoline Price Signs. Gasoline price signs shall be allowed on freestanding signs if made integral with the design of the freestanding sign.
D.
Sign Area. Sign area shall include the sum of the area enclosed within a geometric form or forms drawn around all writing, representations, emblems or designs on all surfaces of the sign which contain or is designed to contain the advertising.
E.
Color and Lighting.
1.
No blinking, flashing, rotating or animated signs, or signs that change color or intensity or emit odors, fluids, noise, smoke, etc., shall be permitted on the exterior of any building, except to display time, date or weather information.
2.
Lights used to illuminate signs or advertising structures shall be installed so as to concentrate the illumination on the sign or advertising structure and minimize glare or direct illumination upon a public street or adjacent property.
3.
No red, green or amber lights or illuminated signs may be placed in such positions that they could reasonably be expected to interfere with or be confused with an official traffic control device or traffic signal or official directional guide signs.
F.
Placement on Buildings.
1.
Roof signs shall not be permitted in any zone.
2.
All building signs projecting more than twelve (12) inches from the building face, wall or canopy upon which it is displayed shall have at least eight feet of clearance between the sign and the ground.
G.
Locational Requirements.
1.
There shall be no lighted, freestanding sign within fifty (50) feet of a residential district.
2.
No sign shall be permitted in or over a public right-of-way or any driveway or walkway, except signs constructed on the face of a building that is located on the property line and parallel to such a right-of-way may project over such right-of-way a maximum of twelve (12) inches. Any such sign shall have a minimum vertical clearance of eight feet above such right-of-way, driveway or walkway.
H.
Exceptions. Exceptions may be made to the size, height, location and numbers of signs as specified in any district, or this section, if a use permit is issued. The burden of proof to justify an exception shall be on the applicant to demonstrate that practical difficulties or hardships would otherwise be caused, and the exception applied for is the most suitable and effective in relation to the location or terrain of the site or from the standpoint of the intended viewer.
I.
Electronic readerboard signs shall be allowed pursuant to the provisions of Section 17.88.095 of this title.
(Ord. 97-99 § 1 (part))
(Ord. No. 12-227, § 1(1), 8-7-2012)
Requirements for zone walls are as follows:
A.
Urban Areas. A use proposed in a commercial (C) or industrial (I) district that abuts an R-1, R-M, R-2, R-3 or MHP district, or a proposed multiple-family residential use that abuts an R-1 district, shall have a solid masonry concrete wall or planted berm six feet in height, constructed along the rear and/or interior side lot line, except for the twenty (20) feet nearest the front lot line, the wall or berm shall be only three feet high.
B.
Rural Areas. For a use proposed in a commercial (C) or industrial (I) district that abuts a resource district or an R-R or R-L district, or a proposed commercial or light industrial use in an MU district that abuts a resource or residential district, a screened cyclone fence may be substituted for the block wall or berm.
C.
Unclassified District. If a proposed commercial or industrial use or abutting property is in a U district, the criteria of subsections A and B shall be applied, as appropriate.
D.
Height Measurement and Location. The height of the wall, berm or fence shall be deter-mined by the vertical distance measured from the top of the wall, berm or fence to the lowest point within three feet of the wall, berm or fence on the commercial or industrial property. The wall, berm or fence shall be constructed on or immediately adjacent to the line dividing the residential and commercial or industrial properties.
E.
Exceptions. If a use permit is issued, exceptions to the zone wall regulations may be made, in whole or part, if it is found that there is a topographic or natural vegetative barrier that will serve to divide the potentially incompatible uses, or if there is a significant distance between the uses that will pro-vide the same buffering.
(Ord. 97-99 § 1 (part))
All new construction of residential, commercial or industrial buildings shall have primary access from an existing paved street. The standards for street construction and exceptions shall be as follows:
A.
General Requirements.
1.
If the street paving existed prior to the effective date of the ordinance codified in this title, the construction standard may be chip seal or asphalt paving. The existing road shall meet at mini-mum the fire safety standards.
2.
If the street is paved after the effective date of the ordinance codified in this title, it shall be constructed to city development standards for paved streets.
3.
Development of any vacant parcel shall be served by a road that meets at minimum the fire safety standards.
B.
Exceptions.
1.
In lieu of paving, the city council may permit the developer to pay a dust mitigation fee. The amount of said dust mitigation fee to be determined by the city council.
A fund shall be established in the city treasury and all dust mitigation fees shall be deposited in said fund. Policies and procedures for expenditure of money in the fund shall be established by the city council. The funds shall be used for paving of city streets, including seed money needed to design and start assessment proceedings for the paving of streets.
2.
The owner shall sign a deferred improvement agreement by which the owner agrees to participate in an assessment district formed to provide a paved road. Said agreement shall be recorded and shall run with the land, and obligates any owner, heirs, successors, or assigns. When sixty (60) percent or more of the owners within a block have signed a deferred improvement agreement, the city council shall call up said agreements and require the paving of said road.
3.
Existing conforming and nonconforming residential structures which do not have frontage on a paved street may be replaced provided the new structure is not more than ten percent larger than the existing floor area and the property owner signs a deferred improvement agreement to participate in the paving at a future date as determined by the city council. Any dwelling replaced shall meet all other standards of the city code and shall comply with Sections 17.30.020A and B of this title. Any replaced structure larger than ten percent may be permitted provided the owner pays a dust mitigation fee as provided for in subsection A of this section.
4.
Conforming structures on parcels not fronting on a paved street may be enlarged up to ten percent of the existing floor area, and accessory buildings not exceeding five hundred (500) square feet may be constructed provided the owner signs a deferred improvement agreement to participate in the paving at a future date as determined by the city council. Any enlarged structure larger than ten percent may be permitted provided the owner pays a dust mitigation fee as provided for in subsection A of this section.
(Ord. 97-99 § 1 (part))
Manufactured homes are allowed in all zoning districts which permit one-family residences and shall be subject to the following development standards:
1.
All manufactured homes shall be placed on a permanent foundation system of state-approved design or a permanent foundation system designed by a licensed architect or structural engineer as required by Section 65852.3 of the State of California Government Code;
2.
The manufactured home shall be certified under the National Mobile Home Construction and Safety Standards Act of 1974;
3.
Manufactured homes placed on a foundation system shall not be older than ten years of age measured from the date of manufacture of the unit to the date of building permit application except that manufactured homes lawfully installed prior to the effective date of this ordinance which have been certified under the National Manufactured Home Construction and Safety Act of 1974 shall be exempt from the ten-year age standard;
4.
Manufactured homes shall provide parking in accordance with Section 17.30.060 and Chapter 17.86. The exterior wall covering and roof material of any required garage or carport shall be the same as those of the manufactured home;
5.
Requirements for building height, lot coverage, side yard setbacks, front yard setbacks, rear yard setbacks, and usable open space shall be subject to the same requirements as the zone in which the manufactured home is located;
6.
Exterior wall covering materials and roofing materials shall conform to the requirements of the State of California Department of Housing and Community Development (HCD) and the uniform building code for frame constructed dwellings. Exterior wall coverings shall extend (at a minimum) to the top of the perimeter foundation.
7.
A foundation enclosure shall be installed between the finish grade and the siding material. Add-on siding needed to extend the exterior siding to the foundation enclosure shall consist of materials similar to the main exterior siding. Venting per the uniform building code shall be required.
8.
All roof and gable overhangs shall extend not less than six inches when measured horizontally from the wall. Roof and gable overhangs shall be manufactured or engineered and designed to appear as an integral part of the manufactured home;
9.
The roof of the manufactured home shall have a minimum pitch of not less than a nominal three inches of vertical rise for each twelve (12) inches of horizontal run;
10.
Roof design shall meet the snow load requirements of the city of Shasta Lake, and roofing materials shall meet the requirements of a Class A or B fire rating as defined by the currently adopted uniform building code.
11.
No ramada or other free-standing structure shall be allowed to be constructed over a manufactured home.
(Ord. 02-146 § 1)