PLANNED DEVELOPMENT OVERLAY DISTRICTS
Successful communities leverage their land use, open space, and transportation plans in a manner which creates a clear sense of scale, transition, and activity towards a hierarchy in strong and memorable community experiences. The foundation of such a hierarchy is the creation of development districts that form a positive collective identity when viewed in total. To achieve such a positive end result, each district should have a unique character defined through its land use mix and physical design.
(a)
Boundaries. The following lands are regulated by the PDO-1 development code.
Phase 1
That part of Parcel 1 of Certified Survey Map No. 9493, as said C.S.M. is recorded in the Waukesha County Register of Deeds Office as Document No. 2900117, as recorded on December 27, 2002, in Volume 87, on pages 1—15 inclusive, and located in the Northwest ¼ of the Southwest ¼ and the Southwest ¼ of the Southwest ¼ of Section 13, Township 8 North, Range 20 East, Village of Menomonee Falls, County of Waukesha, State of Wisconsin. Described as follows:
Beginning at the north most corner of said Parcel 1; thence South 44°05'01" East, along the southwesterly right-of-way line of Appleton Avenue, 242.58 feet to a point of curvature; thence 184.01 feet along the arc of a curve, along said southwesterly right-of-way line, whose radius point bears North 44°05'55" East, 5799.58 feet, with a chord which bears South 44°59'33" East, 184.00 feet, and a central angle of 1°49'04"; thence South 00°05'02" East, 489.49 feet; thence South 31°34'17" East, 105.75 feet; thence South 03°01'22" West, 167.57 feet; thence North 90°00'00" West, 21.15 feet; thence North 00°05'02" West, 133.72; thence South 89°54'58" West, 24.80 feet; thence North 22°32'58" West, 109.77 feet; thence North 00°00'00" East, 338.17 feet; thence South 47°36'31" West, 155.01 feet; thence North 47°13'48" West, 504.46 feet; thence North 43°23'48" East, 330.32 feet to the Point of Beginning.
Said lands as described contains 183,253 square feet or 4.21 acres
Phase 2
That part of Parcel 1 of Certified Survey Map No. 9493, as said C.S.M. is recorded in the Waukesha County Register of Deeds Office as Document No. 2900117, as recorded on December 27, 2002, in Volume 87, on pages 1—15 inclusive, and located in the Northwest ¼ of the Southwest ¼ and the Southwest ¼ of the Southwest ¼ of Section 13, Township 8 North, Range 20 East, Village of Menomonee Falls, County of Waukesha, State of Wisconsin. Described as follows:
Commencing at the north most corner of said Parcel 1; thence South 44°05'01" East, along the southwesterly right-of-way line of Appleton Avenue, 242.58 feet; thence 184.01 feet along the arc of a curve, along said right-of-way line, whose radius point bears North 44°05'55" East, 5799.58 feet, with a chord which bears South 44°59'33" East, 184.00 feet, and a central angle of 1°49'04"; thence South 00°05'02" East, 489.49 feet to the Point of Beginning; thence South 62°50'21" East, 164.96 feet; thence North 00°16'02" West, 314.17 feet; thence South 48°32'06" East, 159.53 feet; thence South 51°48'51" East, 307.07 feet; thence South 38°11'09" West, 85.14 feet; thence South 00°00'00" East, 77.91 feet; thence South 25°30'11" East, 52.26 feet; thence South 00°00'00" East, 8.83 feet; thence North 90°00'00" West, 37.50 feet; thence South 00°00'00" East, 230.49 feet; thence South 13°04'13" West, 24.13 feet; thence North 90°00'00" West, 34.66 feet; thence South 40°33'36" West, 28.48 feet; thence South 74°06'49" West, 51.27 feet; thence South 23°42'47" West, 36.29 feet; thence North 89°33'36" West, 73.98 feet to a point of curvature; thence 393.77 feet along an arc of curve whose radius point bears North 31°18'21" East, 420.54 feet, with a chord which bears North 31°52'10" West, 379.54 feet, and a central angle of 53°38'56"; thence North 90°00'00" East, 4.87 feet; thence North 03°01'22" East, 167.57 feet; thence North 31°34'17" West, 105.75 feet to the Point of Beginning.
Said lands as described contains 238,235 square feet or 5.47 acres
Phase 3
That part of Parcel 1 of Certified Survey Map No. 9493, as said C.S.M. is recorded in the Waukesha County Register of Deeds Office as Document No. 2900117, as recorded on December 27, 2002, in Volume 87, on pages 1—15 inclusive, and located in the Northwest ¼ of the Southwest ¼ and the Southwest ¼ of the Southwest ¼ of Section 13, Township 8 North, Range 20 East, Village of Menomonee Falls, County of Waukesha, State of Wisconsin. Described as follows:
Commencing at the southwest corner of Parcel 2 of said Certified Survey Map; thence North 01°13'51" West, along the westerly line of said Parcel 2, 500.00 feet; thence North 89°54'58"East, 501.43 feet; thence South 00°05'02" East, 454.39 feet; thence South 89°33'36" East, 391.10 feet to the Point of Beginning; thence North 13°04'13" East, 95.66 feet; thence North 00°00'00" West, 230.49 feet; thence South 90°00'00" East, 37.50 feet; thence North 00°00'00" West, 8.83 feet; thence North 90°00'00" East, 33.10 feet; thence North 38°11'09" East, 149.08 feet; thence South 51°48'51" East, 138.42 feet; thence South 50°57'45" East, 221.36 feet; thence South 39°53'05" West, 295.58 feet; thence North 89°33'36" West, 275.60 feet to the Point of Beginning.
Said lands as described contains 134,282 square feet or 3.08 acres
(b)
Applicability.
(1)
All sections of this Code apply to this district, except as otherwise noted or superseded by this PDO-1 development code.
(2)
A precise implementation plan is required for all phases or structures within PDO-1.
(3)
Modifications to an adopted precise implementation plan shall be determined by the village manager or designee as a major (different building footprint) or minor (modifications of landscaping) modification. Major modifications as defined in subsection 122-364(g)(2), require the submission and approval of a new specific implementation plan. Minor modifications defined as any change not classified as a major change, may be approved by the zoning administrator, however any minor change shall be properly filed with the zoning administrator, or it shall be automatically be deemed to be a major change.
(c)
Conditional uses.
(1)
Shall be required per article IV of this chapter.
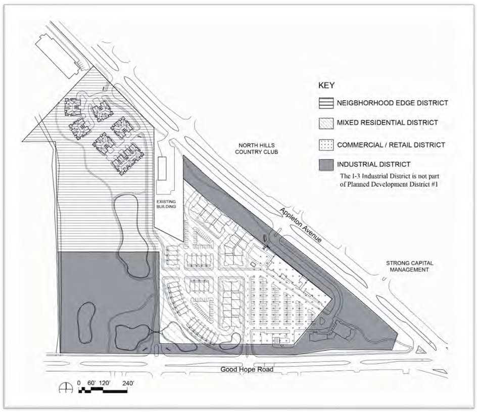
The PDO-1 is divided into three different districts per the PDO-1 regulating plan (figure 122-802.1). Only the neighborhood edge district, mixed residential district, and commercial/retail district are regulated by this PDO-1 development code. Diagrams and descriptions of the industrial district are included in the development code for purposes of clarity and continuity of the overall planning of the area; however, the regulations found herein are not applicable to development within the I-3 zoning district.
Figure 122-802.1 PDO-1 Regulating Plan
(1)
Masterplan site statistics.
a.
The PDO-1 masterplan shall meet the following site development requirements:
1.
Total masterplan acreage: 19.0 acres.
2.
Dedicated open space: 6.50 acres/40 percent minimum.
3.
Building coverage ratio: 20 percent maximum.
4.
Floor area ratio: 60 percent maximum.
(2)
Commercial/retail district.
a.
The commercial/retail district shall meet the following site development requirements:
1.
Acreage: 3.0 acres.
2.
Maximum dwelling units: no dwelling units permitted.
3.
Maximum development density: 40,000 square feet of commercial/retail uses.
Figure 122-802.2 Commercial/Retail District Plan
(3)
Mixed residential district.
a.
The mixed residential district shall meet the following site development requirements:
1.
Maximum non-residential land use: 12,000 square feet of commercial/retail uses.
2.
Maximum residential density: 30.0 dwelling units per acre.
Figure 122-802.3 Mixed Residential District Plan
(4)
Neighborhood edge district.
a.
The neighborhood edge district shall meet the following site development requirements:
1.
Acreage: 3.0 acres.
2.
Maximum dwelling units: 20 units.
3.
Maximum residential density: 6.7 dwelling units per acre.
Figure 122-802.4 Neighborhood Edge District
The PDO-1 shall incorporate three dedicated open space areas as illustrated by the PDO-1 open space plan (figure 122-803.1).
Figure 122-803.1 PDO-1 Open Space Plan
(1)
Lilly Creek Nature Reserve.
a.
Size and location.
1.
The Lilly Creek Nature Reserve, at approximately 5.02 acres, is the largest dedicated open space of the PDO-1. Its boundaries shall be as follows:
That part of Parcel 1 of Certified Survey Map No. 9493, as said C.S.M. is recorded in the Waukesha County Register of Deeds Office as Document No. 2900117, as recorded on December 27, 2002, in Volume 87, on pages 1—15 inclusive, and located in the Northwest 1/4 of the Southwest ¼ and the Southwest ¼ of the Southwest ¼ of Section 13, Township 8 North, Range 20 East, Village of Menomonee Falls, County of Waukesha, State of Wisconsin. Described as follows:
Commencing at the north most corner of said Parcel 1; thence South 43°23'48" West, 330.32 feet to the Point of Beginning thence South 47°13'48" East, 504.46 feet; thence North 47°36'31" East, 155.01 feet; thence South 00°00'0" West, 338.17 feet; thence South 22°32'58" East, 109.77 feet; thence South 89°54'58" West, 476.63 feet; thence North 01°13'51" West, 543.68 feet; thence South 89°51'13" West, 166.40 feet; thence North 43°23'48" East, 186.04 feet to the Point of Beginning. Said lands as described contains 218,648 square feet or 5.02 acres
b.
Use restrictions.
1.
The Lilly Creek Nature Reserve shall be maintained as a pristine setting with its natural amenities preserved, restored, and/or enhanced.
2.
Preservation, restoration, and/or enhancement of the wetlands within the Lilly Creek Nature Reserve are subject to village and DNR approval.
3.
The Lilly Creek Nature Reserve shall be preserved, restored, and/or enhanced to encourage low-impact pedestrian interaction and activities such as walking, jogging, biking, picnicking, wildlife watching, etc. It will also serve as a primary vista for units located in the mixed residential and neighborhood edge districts.
4.
Improvements other than natural restoration or enhancements shall be limited to the following non-wetland areas:
i.
Water detention/retention systems, basins, etc. These shall be designed to blend seamlessly into the natural setting.
ii.
Sidewalks, plazas, and trails as permitted per section 122-804.
iii.
Stand-alone community structures permitted with approval of the plan commission and architectural control board.
iv.
Site amenities such as benches, seating, and trash receptacles which will enhance the interaction with, and the conservation of, the Lilly Creek Nature Reserve. See section 122-810, site amenities, for additional requirements.
v.
Signage per section 122-812, site signage.
c.
Landscaping.
1.
See section 122-809, landscaping standards, for additional requirements.
(2)
Good Hope Road Green Space.
a.
Size and location.
1.
The Good Hope Green Space shall be a ½ to 1½ acre open space. Its boundaries shall be as follows: That part of Parcel 1 of Certified Survey Map No. 9493, Described as follows: Commencing at the southwest of Parcel 2 of said Certified Survey Map; thence North 01°13'51" West, along the westerly line of said Parcel 2, 500.00 feet; thence North 89°54'58"East, 501.43 feet; thence South 00°05'02" East, 133.72 feet to the Point of Beginning; thence South 90°00'00" East, 16.28 feet; thence 393.77 feet along an arc of 420.54 foot radius curve to the right, a chord which bears South 31°52'10" East, 379.54 feet, and a central angle of 53°38'56"; thence North 89°33'36" West, 216.21 feet; thence North 00°05'02" West, 320.67 feet to the Point of Beginning. Said lands as described contains 25,709 square feet or 0.59 acres.
Also;
Commencing at the southwest of Parcel 2 of said Certified Survey Map; thence North 01°13'51" West, along the westerly line of said Parcel 2, 500.00 feet; thence North 89°54'58"East, 501.43 feet; thence South 00°05'02" East, 454.39 feet; thence South 89°33'36" East, 290.19 feet to the Point of Beginning; thence North 23°42'47" East, 36.29 feet; thence North 74°06'49" East, 51.27 feet; thence North 40°33'36" East, 28.48 feet; thence North 90°00'00" East, 34.66 feet; thence South 13°04'13" West, 71.53 feet; thence North 89°33'36" West, 100.91 feet to the Point of Beginning. Said lands as described contains 5,178 square feet or 0.12 acres.
b.
Use restrictions.
1.
The Good Hope Road green space shall be maintained as a pristine setting with its landscaped amenities.
2.
The Good Hope Road green space shall be preserved, restored, and/or enhanced to encourage low-impact pedestrian interaction and activities such as walking, jogging, biking, wildlife watching, etc. It will also serve as a primary vista for units located in the mixed residential district.
3.
Improvements other than maintenance and improvements to landscaping shall be limited to:
i.
Water detention/retention systems, basins, etc. These shall be designed to blend seamlessly into the setting.
ii.
Sidewalks, plazas, and trails as permitted per section 122-804.
iii.
Stand-alone community structures permitted with approval of the plan commission and architectural control board.
iv.
Site amenities such as benches, seating, and trash receptacles which will enhance the interaction with, and the conservation of, the green space. See section 122-810, site amenities, for additional requirements.
v.
Signage per section 122-812, site signage.
c.
Landscaping.
1.
See section 122-809, landscaping standards, for additional requirements.
(3)
Market Plaza.
a.
Size and location. Market Plaza shall be located at the northwest corner of the commercial/retail district and the northeast corner of the mixed residential district, and contain 17,120 square feet or 0.39 acres.
b.
Design characteristics.
1.
Market Plaza shall have a combination of landscaped and hardscaped surfaces.
2.
Market Plaza shall serve as a visual terminus at the vehicular access points off of Appleton Avenue and Good Hope Road.
3.
Market Plaza shall be designed to encourage and accommodate public gathering areas as well as pedestrian interaction and activity.
4.
Improvements other than maintenance and improvements to landscaping shall be limited to:
i.
Sidewalks/plazas permitted per section 122-804.
ii.
Stand-alone community structures permitted with approval of the plan commission and architectural control board.
iii.
Site amenities such as benches, seating, trash receptacles, lighting, bike racks, etc., which will encourage and enhance pedestrian activity. See section 122-810, site amenities, for additional requirements.
iv.
Signage per section 122-812, site signage.
c.
Landscaping.
1.
See section 122-809, landscaping standards, for additional requirements.
(a)
Private street development regulations.
(1)
Location and classification.
a.
All roads for vehicular circulation shall be located and classified in accordance with the PDO-1 street development plan (figure 122-804.1).
Figure 122-804.1 PDO-1 Street Development Plan
(2)
Ownership.
a.
All roads within the PDO-1 shall be private roads.
(3)
Design and construction standards.
a.
All roads for vehicular circulation shall comply with section 94, article III, division 2 of this Code unless otherwise regulated by this PDO-1 development code.
b.
All road surfaces shall be of any of the following (or combination of the following) materials, and must be designed and constructed to meet or exceed minimum industry design/construction codes and standards.
1.
Concrete.
2.
Asphalt.
3.
Unit pavers.
(4)
Right-of-way cross-section. (See figure 122-804.1).
a.
Market streets (see figure 122-804.2).
1.
Road width. Thirty feet (inside curb-to-inside curb).
i.
Market streets shall accommodate two-way traffic.
ii.
No parking is allowed on market streets.
2.
Sidewalk apron. Four-foot width (minimum).
i.
Aprons are required at all sidewalks.
ii.
Aprons may have landscaped and/or hardscaped surfaces.
iii.
See section 122-809 for additional information on trees and other landscaping requirements.
iv.
See section 122-811 for additional information on lighting requirements.
3.
Sidewalk. Five-foot width (minimum).
i.
Sidewalks are required at the building side of market streets.
ii.
See subsection (b) below, for additional information on sidewalks and plazas.
b.
Residential streets (see figure 122-804.3).
1.
Road width. Thirty-two feet (inside curb-to-inside curb).
i.
Residential streets shall accommodate two-way traffic.
ii.
Residential streets shall allow for parking on one side of road (eight-foot parking lane). Parking spaces shall be clearly marked.
2.
Sidewalk apron. Five-foot width (minimum).
i.
Aprons are required.
ii.
Aprons shall consist of landscaped surfaces only.
iii.
See section 122-809 for additional information on trees and other landscaping requirements.
iv.
See section 122-811 for additional information on lighting requirements.
3.
Sidewalk. Five-foot width.
i.
Sidewalks are required on both sides of road.
ii.
See subsection (b) below, for additional information on sidewalks and plazas.
c.
Residential drives (see figures 122-804.4 and 122-804.6).
1.
Road width. South of residential street: 32 feet (inside curb-to-inside curb).
i.
North of residential street 24-foot minimum and 32-foot max (inside curb-to-inside curb).
ii.
Residential drives shall accommodate two-way traffic.
iii.
Residential streets may allow for parking on one side of road (eight-foot parking lane). If parking is provided, then the parking shall be marked appropriately either with surface striping or signage.
2.
Sidewalk apron. Five-foot width (minimum).
i.
Aprons are required.
ii.
Aprons shall consist of landscaped surfaces only.
iii.
See section 122-809 for additional information on trees and other landscaping requirements.
iv.
See section 122-811 for additional information on lighting requirements.
3.
Sidewalk. Five-foot width.
i.
South of residential street: sidewalks are required on both sides of road.
ii.
North of residential street: sidewalks are required on the West side of the drive and may be permitted on the East side of the drive.
iii.
See subsection (b) below, for additional information on sidewalks and plazas.
d.
Entry courts (see figures 122-804.5 and 122-804.7).
1.
Road width. Minimum 22 feet.
i.
Entry courts shall accommodate two-way traffic.
ii.
No parallel parking is allowed on roads classified as entry courts.
iii.
Dedicated perpendicular parking spaces and/or driveways are allowed on roads classified as entry courts.
2.
Sidewalk apron. Four-foot width (minimum).
i.
Aprons are required adjacent to town houses, and midrise buildings. Aprons are not required adjacent to duplexes and four-plex ranch style units.
ii.
Aprons shall consist of landscaped surfaces only.
iii.
See section 122-809 for additional information on trees and other landscaping requirements.
iv.
See section 122-811 for additional information on lighting requirements.
3.
Sidewalk. Five-foot width (minimum).
i.
Sidewalks are not required adjacent to townhomes or structures within the neighborhood edge district, but are encouraged. Sidewalks shall be provided adjacent to midrise buildings and duplex and four-plex ranch style units. See subsection (b) below, for additional information on sidewalks and plazas.
Figure 122-804.2 Market Street
Figure 122-804.3 Residential Street
Figure 122-804.4 Residential Drive - North
Figure 122-804.5 Entry Court - Ranch
Figure 122-804.6 Residential Drive - South
Figure 122-804.7 Entry Court - Mixed Residential
Figure 122-804.8 Road, Sidewalk, and Sidewalk Apron Requirements
(b)
Sidewalks and plazas.
(1)
Connectivity.
a.
In addition to the sidewalk locations outlined in subsection 122-804(a)(4), all internal sidewalks shall connect to all existing or planned sidewalks within the adjoining zoning districts and public rights-of-way (see figure 122-804.8).
Figure 122-804.9 PDO-1 Pedestrian Circulation Plan
(2)
The sidewalk/plaza network shall be uninterrupted with the exception of where sidewalks intersect with roads, private roads, and driveways.
(3)
Design and construction standards.
a.
All sidewalks shall have a minimum width of five feet unless otherwise regulated by this PDO-1 development code.
b.
Sidewalk and plaza surfaces shall be of any of the following (or combination of the following) materials and must be designed and constructed to meet or exceed minimum industry design/construction codes and standards.
1.
Concrete, including standard finishes, colored finishes, and textured finishes.
2.
Unit pavers.
3.
Colored concrete and unit pavers shall match or be similar to the TID #4 improvements.
(c)
Trails.
(1)
Location.
a.
In addition to the sidewalks outlined in subsection (b) above, a continuous trail system shall be located at the following location (see figure 122-804.8).
1.
From the sidewalk along Good Hope Road (West of Claas Road) up through the Lilly Creek Nature Reserve and to its northern most portions.
b.
The trail system shall run adjacent to, and take advantage of natural amenities such as ponds, trees, etc. The trial system shall not be located in any wetland areas.
c.
The trail system shall connect to the sidewalk system in no less than three separate locations.
(2)
The trail system shall be uninterrupted with the exception of where trails intersect with sidewalks.
(3)
Design and construction standards.
a.
All trails shall have a minimum width of five feet. Portions of the trail system can be reduced to a width of three feet where the site's natural features prohibit a five-foot width.
b.
Trail surfaces shall be of any of the following (or combination of the following) materials and must be designed and constructed to meet or exceed minimum industry design/construction codes and standards.
1.
Unit pavers.
2.
Compacted gravel, stone, etc.
3.
Grass-pavers or other similar composite paving system.
4.
Mowed turf.
c.
Rest areas with benches and trash receptacles are encouraged to be located at areas that take best advantage of the natural amenities of the site. See section 122-810, site amenities, for additional requirements.
Parking for the PDO-1 district shall meet the following requirements according to district and building use. The total vehicular parking requirements may include street parking, and individual parking areas may serve multiple buildings and/or multiple districts.
(1)
Commercial/retail district.
a.
Required vehicular parking ratios (minimums).
1.
Restaurants without drive-through facilities.
i.
One parking space per 150 gross square feet.
2.
Banks with or without drive-through facilities.
i.
One parking space per 300 gross square feet.
3.
All other permitted and conditional uses per subsection 122-806(a)(1).
i.
One parking space per 250 gross square feet.
b.
Landscaping islands at surface parking areas. Unless variation is required to enable the use of landscaped islands as vegetated stormwater control measures, the following standards shall apply:
1.
The end of each parking aisle shall have a landscape island with a minimum width of two feet and a minimum average width of four feet.
2.
At each parking aisle, landscape islands of a minimum width of four feet shall be provided between every 16 perpendicular parking spaces and every six parallel parking spaces (minimum).
c.
Required bicycle parking ratios (minimums).
1.
All permitted and conditional uses per section 122-806.
i.
Provide one exterior bicycle parking space per 3,000 gross square feet.
d.
Bicycle parking spaces.
1.
Bicycle parking requirements shall be accommodated with bicycle racks that meet all of the following criteria:
i.
Racks shall allow for the bicycle frame and one wheel to be locked to the rack.
ii.
Racks shall be securely anchored to the ground or building.
iii.
Racks shall be located as to not impede pedestrian or vehicular traffic—an area of two feet by six feet per space shall be provided.
iv.
Racks shall be located within 100 feet of the building it serves.
2.
Bicycle lockers or other bicycle storage/parking methods shall be permitted with approval of the village plan commission.
e.
Cross district parking.
1.
Parking for buildings within the adjacent I-3 zoning district may be provided within the commercial retail district. An easement for any required I-3 parking must be established.
2.
Parking for buildings within the adjacent mixed residential district may be provided within the commercial/retail district in accordance to the parking ratios in section 122-731.
(2)
Mixed residential district.
a.
Required vehicular parking ratios (minimums).
1.
Residential uses permitted per subsection 122-806(a)(2).
i.
A minimum of one covered space per residential unit and a total minimum of 2.25 spaces per residential unit.
2.
Non-residential permitted and conditional uses per subsection 122-806(a)(2)(a)(2).
i.
One parking space per 300 gross square feet.
b.
Landscaping islands at surface parking areas. Unless variation is required to enable the use of landscaped islands as vegetated stormwater control measures, the following standards shall apply:
1.
The end of each parking aisle shall have a landscape island with a minimum width of two feet and a minimum average width of four feet.
2.
At each parking aisle, landscape islands of a minimum width of four feet shall be provided between every 16 perpendicular parking spaces and every six parallel parking spaces (minimum).
c.
Required bicycle parking ratios (minimums).
1.
Residential uses permitted per subsection 122-806(a)(2).
i.
Provide one exterior bicycle parking space per 20 residential dwelling units.
d.
Bicycle parking spaces.
1.
Bicycle parking requirements shall be accommodated with bicycle racks that meet all of the following criteria:
i.
Racks shall allow for the bicycle frame and one wheel to be locked to the rack.
ii.
Racks shall be securely anchored to the ground or building.
iii.
Racks shall be located as to not impede on pedestrian or vehicular traffic—an area of two feet by six feet per space shall be provided.
iv.
Racks shall be located within 100 feet of the building it serves.
2.
Bicycle lockers or other bicycle storage/parking methods shall be permitted with approval of the village plan commission.
e.
Cross district parking.
1.
Parking for buildings within the mixed residential district may be provided within the adjacent commercial/retail district.
(3)
Neighborhood edge district.
a.
Required vehicular parking ratios (minimums).
1.
Residential uses permitted per subsection 122-806(a)(3).
i.
Minimum two enclosed spaces per residential unit.
b.
Landscaping islands at surface parking areas. Unless variation is required to enable the use of landscaped islands as vegetated stormwater control measures, the following standards shall apply:
1.
The end of each parking aisle shall have a landscape island. Each island shall have an average minimum width of five feet.
2.
Within each parking aisle, sufficient landscape islands of a minimum width of four feet shall be provided between every 16 perpendicular parking spaces and every six parallel parking spaces (minimum).
c.
Required bicycle parking ratios (minimums).
1.
No exterior bicycle parking is required.
d.
Bicycle parking spaces.
1.
Bicycle parking shall be accommodated with bicycle racks that meet all of the following criteria:
i.
Racks shall allow for the bicycle frame and one wheel to be locked to the rack.
ii.
Racks shall be securely anchored to the ground or building.
iii.
Racks shall be located as to not impede on pedestrian or vehicular traffic—an area of two feet by six feet per space shall be provided.
iv.
Racks shall be located within one hundred feet of the building it serves.
2.
Bicycle lockers or other bicycle storage/parking methods shall be permitted with approval of the village plan commission.
e.
Cross district parking.
1.
No cross-district parking is permitted in the neighborhood edge district.
Building use for the PDO-1 shall be regulated by district type as illustrated by the PDO-1 regulating plan (figure 122-802.1).
(1)
Commercial/retail district.
a.
Permitted uses.
1.
Retail shops.
2.
Restaurants without drive-through facilities.
3.
Personal and professional services.
4.
Banks with or without drive-through facilities.
5.
Professional offices.
b.
Conditional uses.
1.
The following uses and/or structures require a conditional use permit. Requests for conditional use permits are considered by the village board of trustees after receiving a recommendation from the plan commission. The issuance of a conditional use permit is entirely at the village board's discretion and is, therefore, subject to denial.
i.
The uses in a PDO requiring a conditional use permit in figure 122-420.1.
(2)
Mixed residential district.
a.
Permitted uses.
1.
Residential dwelling units comprised of the following building types:
i.
Single family residences.
ii.
Duplexes.
iii.
Multi-family buildings with no more than 60 dwelling units per building.
2.
In addition to the residential uses described above, the following uses are permitted at the ground floor level of buildings that front onto the Market Plaza and Community Green or roads classified as market streets:
i.
Retail shops.
ii.
Restaurants without drive-through facilities.
iii.
Personal and professional services.
iv.
Professional offices.
b.
Accessory uses.
1.
Home occupations that do not involve the coming and going of customers, clients, vendors, etc.
2.
Professional home offices where a portion of a residence of a professional is used to assist in conducting their profession and is not the principal office of the professional's business.
c.
Conditional uses.
1.
The uses in a PDO requiring a conditional use permit in figure 122-420.1.
(3)
Neighborhood edge district.
a.
Permitted uses.
1.
Residential dwelling units comprised of the following building types:
i.
Single family residences.
ii.
Duplexes.
iii.
Multi-family buildings with no more than four dwelling units per building.
b.
Accessory uses.
1.
Home occupations that do not involve the coming and going of customers, clients, vendors, etc.
2.
Professional home offices where a portion of a residence of a professional is used to assist in the conducting their profession and is not the principal office of the professional's business.
Building requirements for the PDO-1 shall be regulated by district type as illustrated by the PDO-1 regulating plan (figure 122-802.1).
(1)
Commercial/retail district.
a.
Building placement. (See figure 122-807.1). Note: all accessory structures shall comply with building placement regulations unless otherwise noted.
1.
Front setback. Twelve-foot minimum setback from roads classified as market streets.
2.
Side setback. Ten-foot minimum setback from all roads and property lines.
3.
Rear setback. Ten-foot minimum setback from all roads and property lines.
4.
Adjacent buildings.
i.
No minimum setback from commercial/retail buildings.
ii.
Fifty-foot minimum setback from residential buildings.
5.
Appleton Avenue. Eighty-five-foot minimum setback.
6.
Good Hope Road. Fifty-foot minimum setback.
7.
I-3 zoning district boundary. No minimum setback from boundary.
8.
Market Plaza. No minimum setback and ten-foot maximum setback from Market Plaza open space.
b.
Permitted encroachments.
1.
Awnings, canopies, open porches, and covered walkways may encroach a maximum of six feet into setbacks described in subsection a. above.
2.
No part of any building may extend over a property line or easement.
c.
Building height.
1.
Buildings in the commercial/retail district shall have a minimum height of 15 feet, a maximum of two stories above ground and be limited to a height of 40 feet.
2.
Building height shall be measured from the ground plane to top of parapet or eave of sloped roof.
d.
Accessory structures.
1.
Dumpster enclosures.
i.
Shall be located at the side or rear of the commercial retail building(s).
ii.
Shall have comply with the minimum setbacks for building placement indicated above and shall have a minimum setback of ten feet from the front face of the building(s) that it serves.
iii.
Shall be constructed with the same exterior material palette of the building(s) that it serves.
iv.
When appropriate, shall incorporate landscape screening to reduce its visual impact on the public realm.
2.
Landscape walls, fences, etc. Permitted within setback areas if the height is 4.5 feet or less. Greater than 4.5 feet shall require approval by the architectural control board.
3.
Other structures. Stand-alone community structures are permitted with approval of the plan commission and the architectural control board.
e.
Architectural design guidelines. See section 122-808, architectural standards.
(2)
Mixed residential district.
a.
Building placement. (See figure 122-807.1). Note: all accessory structures shall comply with building placement regulations unless otherwise noted.
1.
Front setback.
i.
Twenty-five-foot build-to line from roads classified as residential streets.
ii.
Twenty-foot build-to line from roads classified as market streets.
iii.
Twenty-five-foot minimum setback from roads classified as residential drives.
2.
Side setback.
i.
Twenty-foot minimum setback and 25-foot maximum setback from roads classified as residential streets.
ii.
Ten-foot minimum setback from all roads and property lines not described above.
3.
Rear setback.
i.
Ten-foot minimum setback from all property lines.
ii.
Townhome buildings: two-foot minimum setback from all roads.
iii.
Midrise buildings: 15-foot minimum setback from all roads.
4.
Adjacent buildings.
i.
Twenty-foot minimum setback from residential buildings.
ii.
Fifty-foot minimum setback from commercial/retail buildings.
5.
Appleton Avenue. Eighty-five-foot minimum setback.
6.
Good Hope Road. Fifty-foot minimum setback.
7.
I-3 zoning district boundary. No minimum setback from boundary.
8.
Market Plaza. Fifteen-foot minimum setback and 25-foot maximum setback from Market Plaza open space.
b.
Permitted encroachments.
1.
Landscape and retaining walls, bay windows, box windows, awnings, canopies, open porches, balconies, decks and covered walkways may encroach a maximum of six feet into setbacks described in subparagraph a. above.
2.
No part of any building may extend over a property line or easement.
c.
Building height.
1.
Buildings in the mixed residential district shall have a maximum of four and one-half stories and be limited to a height of 65 feet.
2.
Building height shall be measured from the ground plane to top of parapet or eave of sloped roof.
d.
Accessory structures.
1.
Dumpster enclosures shall comply with section 71-91 of this Code.
2.
Landscape walls, fences. Permitted within setback areas if the height is 4.5 feet or less. Greater than 4.5 feet shall require approval by the architectural control board.
3.
Other structures.
e.
Stand-alone community structures are permitted with approval of the plan commission and architectural control board.
1.
Architectural design guidelines: see section 122-808, architectural standards.
(3)
Neighborhood edge district.
a.
Building placement. (See figure 122-807.1). Note: all accessory structures shall comply with building placement regulations unless otherwise noted.
1.
Road setbacks.
i.
Eighteen-foot minimum setback from roads classified as entry courts.
ii.
Ten-foot minimum setback from roads classified as residential drives.
2.
Side setbacks. Ten-foot minimum setback from all property lines.
3.
Nature reserve setback. Five-foot minimum setback from nature reserve boundary.
b.
Adjacent buildings.
1.
Twenty-foot minimum setback from residential buildings.
2.
Appleton Avenue: 50-foot minimum setback.
3.
Good Hope Road: 50-foot minimum setback.
4.
I-3 zoning district boundary: no minimum setback from boundary.
c.
Permitted encroachments.
1.
Landscape and retaining walls, bay windows, box windows, awnings, canopies, open porches, balconies, decks and covered walkways may encroach a maximum of six feet into setbacks described in subsection 122-807(c)(1).
2.
No part of any building may extend over a property line or easement.
d.
Building height.
1.
Buildings in the neighborhood edge district shall have a maximum of two stories and be limited to a height of 40 feet.
2.
Building height shall be measured from the ground plane to the highest ridge of the roof.
e.
Accessory structures.
1.
Dumpster enclosures, garden structures, sheds and play-sets shall not be permitted.
2.
Landscape walls, fences, flagpoles, etc. are permitted with approval of a landscaping plan by the architectural control board.
f.
Community structures.
1.
Stand-alone community structures are permitted with approval of the plan commission and architectural control board.
2.
Guard houses and mailbox kiosks are permitted with approval of the architectural control board.
g.
Architectural design guidelines. See section 122-808, architectural standards.
Figure 122-807.1 Building Placement Requirements
(a)
Commercial/retail district. The commercial/retail district shall contain buildings with the most "contemporary" architectural designs in the PDO-1. Unique usage of building massing, proportions, fenestration patterns, and materials shall be permitted. However, to maintain the appearance of a cohesive community, the buildings in this district shall relate in some way (via scale, massing, materials, etc.) to the architecture in the mixed residential district and the neighborhood edge district and the larger neighborhood. See figures 122-808.1 and 122-808.2 for architectural character examples.
(1)
Relationship to context.
a.
New building designs shall consider the design and activities of any adjacent existing or planned building designs in relation to building access, parking areas, service areas, building setbacks, building heights, materials, and colors. Shared service areas shall be utilized whenever possible.
b.
No two buildings shall be exactly alike. Variations in building massing, roof planes, fenestration patterns, material usage, and color are required.
c.
Building use and public entrances shall be oriented towards market streets and engage market street sidewalks.
d.
Building(s) adjacent to the Market Plaza shall relate to the Market Plaza with building entrances, storefront windows, display or similar features, and/or public entrances. Structures or amenities that relate to outdoor uses shall be coordinated with the building architecture and the overall improvements within the PDO-1.
e.
Service areas and dumpster locations shall be located at the side, rear or inside of buildings. These areas shall be appropriately screened from the view of market streets, Appleton Avenue, and Good Hope Road.
f.
Mechanical equipment shall be located at the side, rear, roof, or inside of buildings and shall be appropriately screened from the view of market streets, Appleton Avenue, and Good Hope Road.
(2)
Building massing.
a.
Slightly varied building setbacks shall be encouraged to create an organic streetscape.
b.
Concave, convex, flat, and sloped roofs, or a combination thereof, are permitted.
c.
Varied building massing and roof heights, especially along building facades visible from market streets, Appleton Avenue and Good Hope Road, shall be encouraged. Long expanses of unbroken exterior facades and roof planes shall be avoided.
d.
The use of awnings, canopies, colonnades, covered walkways, pergolas, etc. are permitted to create a more pedestrian friendly scale and add visual interest to buildings.
(3)
Building fenestration (doors and windows).
a.
Primary facades along market streets and the Market Plaza shall maximize fenestration at the ground floor (pedestrian level).
b.
Secondary facades visible from market streets, Appleton Avenue, Good Hope Road, and the Market Plaza shall not be blank and windowless. These facades shall have fenestration patterns complementary to the building's primary facade.
c.
Service area facades shall continue fenestration patterns around the corner from the primary and secondary facades. Building facades located at service areas shall be screened from the view of market streets, Appleton Avenue, and Good Hope Road with architectural features (such as a masonry wall).
(4)
Building materials.
a.
The unique usage and treatment of exterior building materials is permitted. however, a building's material palette shall include materials similar or compatible to other buildings located in the mixed residential and the commercial/retail districts in order to maintain a continuity of community.
b.
The primary materials that are appropriate for use on facades in the commercial/retail district are:
1.
Stone veneer (including manufactured stone).
2.
Brick veneer.
3.
Pre-cast or cast-in-place concrete.
4.
Metal panel systems.
5.
Fiber-cement siding/trim.
6.
Wood siding/trim.
7.
Glass/metal curtain wall systems.
8.
Wood or metal windows/storefront systems.
9.
Fiberglass roof shingles.
10.
Metal roof systems.
11.
Tile or slate roof systems.
12.
Metal, wood, fabric, or membrane awnings/canopies/pergolas, etc.
c.
Other materials may be approved by the architectural control board on a case-by-case basis. The following materials may be permitted:
1.
Concrete masonry units;
2.
Metal siding/trim system.
d.
The primary materials that are not appropriate for use in the commercial/retail district are:
1.
Vinyl siding;
2.
Vinyl windows;
3.
PVC siding/trim material;
4.
Other materials not listed in subsection 122-808(a)(4)(b) and not approved by the village architectural control board.
Figure 122-808.1 Commercial/Retail District Architectural Imagery
Figure 122-808.2 Commercial/Retail District Architectural Imagery
(b)
Mixed residential district. The mixed residential district shall contain buildings with a "transitional" architectural style. The buildings in this "transitional" style shall use traditional massing, forms, and elements, but may explore the usage of more contemporary uses of proportions, fenestration patterns, and materials. The buildings in this district shall serve as a transition between the architecture of the buildings within the commercial/retail district and the architecture of the buildings within the neighborhood edge district. See figure 122-808.3 for character examples.
(1)
Relationship to context.
a.
New building designs shall consider the design and activities of any adjacent existing or planned building designs in relation to building access, parking areas, service areas, building setbacks, building heights, materials, and colors.
b.
Shared service areas shall be utilized whenever possible.
c.
Building use and public entrances shall be oriented towards the residential drive, residential street, market streets, or the Market Plaza.
d.
Building(s) adjacent to the Market Plaza shall relate to the Market Plaza with building entrances, storefront windows, display or similar features, and/or public entrances. Structures or amenities that relate to outdoor uses shall be coordinated with the building architecture and the overall improvements within the PDO-1.
e.
Service areas and dumpster locations shall be located at the side, rear or inside of buildings and shall comply with section 71-91 of this Code.
f.
Mechanical equipment shall be located at the side, rear, roof, or inside of buildings and shall be appropriately screened from the view of the residential drive, residential street, market streets, Appleton Avenue, and Good Hope Road.
(2)
Building massing.
a.
All buildings that are on the residential street (front or side) shall have consistent setbacks to help define the 'public realm' of the residential street.
b.
Buildings that front the residential drive shall have front setbacks that vary to maximize the integration of the Good Hope Road green space (subsection 122-803(2)) into the district.
c.
Traditional massing, forms and architectural elements shall be incorporated into the building designs.
1.
Appropriate forms and elements include gables, hips, bays, dormers, porches, balconies, canopies, etc.
d.
Concave, convex, flat roofs, sloped roofs, or a combination of flat and sloped roofs are permitted.
1.
Flat roofs shall incorporate a traditional parapet condition with a defined cornice.
e.
Varied building massing and roof heights, especially along building facades visible from the residential drive, residential street, market streets, Appleton Avenue and Good Hope Road, shall be encouraged. Long expanses of unbroken exterior facades and roof planes shall not be permitted.
f.
The use of awnings, canopies, colonnades, covered walkways, pergolas, etc. are encouraged to create a more pedestrian friendly scale and add visual interest to buildings.
(3)
Building fenestration (doors and windows).
a.
Facades along market streets and the Market Plaza shall maximize fenestration at the ground floor (pedestrian level) as appropriate for the architectural design when the ground floor uses are non-residential uses permitted per subsection 122-806(a)(1).
b.
Primary building facades are those that front the residential drive, residential street, market streets, Appleton Avenue, Good Hope Road, and the Market Plaza.
c.
Secondary facades that do not front, but are visible from, the residential drive, residential street, market streets, Appleton Avenue, Good Hope Road, and the Market Plaza shall have fenestration patterns complementary to the building's primary facade. Large expanses of blank, windowless exterior walls shall not be permitted.
d.
Building facades located at service areas or that contain garage doors shall be screened from the view of the residential drive, residential street, market streets, Appleton Avenue, Good Hope Road, and the Market Plaza through the means of architectural elements, intensive landscaping or combination thereof.
(4)
Building materials.
a.
The unique usage and treatment of exterior building materials is permitted - however, a building's material palette shall include materials similar or compatible to other buildings located in the neighborhood edge, mixed residential and the commercial/retail districts in order to maintain a continuity of community.
b.
The primary materials that are appropriate for use in the mixed residential district are:
1.
Stone veneer (including manufactured stone).
2.
Brick veneer.
3.
Pre-cast or cast-in-place concrete.
4.
Metal panel systems.
5.
Fiber-cement siding/trim.
6.
Wood siding/trim.
7.
Glass/metal curtain wall systems.
8.
Wood or metal windows/storefront systems.
9.
Fiberglass roof shingles.
10.
Metal roof systems.
11.
Tile or slate roof systems.
12.
Metal, wood, fabric, or membrane awnings/canopies/pergolas, etc.
c.
Other materials may be approved by the architectural control board on a case-by-case basis. The following materials may be permitted:
1.
Concrete masonry units.
2.
Metal siding/trim system.
d.
The primary materials that are not appropriate for use in the mixed residential district are:
1.
Vinyl siding.
2.
PVC siding/trim material.
3.
Other materials not listed in subparagraph b. above, and not approved by the village architectural control board.
Figure 122-808.3 Mixed Residential District Architectural Imagery
(c)
Neighborhood edge district. The neighborhood edge district shall contain buildings with a "traditional old world" architectural style. The buildings in this traditional style shall use traditional massing, forms, and architectural elements, and shall incorporate traditional proportions, fenestration patterns, and material usage. See figure 122-808.4 for character examples.
(1)
Relationship to context.
a.
New building designs shall consider the design and activities of any adjacent existing or planned building designs in relation to building access, parking areas, service areas, building setbacks, building heights, materials, and colors.
b.
Shared service/access areas shall be utilized whenever possible.
c.
Four-sided architecture is required for all structures within this district.
d.
No two buildings shall be alike. Variations in building massing, roof planes, fenestration patterns, material usage, or color are recommended.
e.
Service areas and facades that contain garage doors shall be oriented towards the entry courts and be screened from the view of the residential drive, Appleton Avenue, and the Lilly Creek Nature Reserve through the means of architectural elements, landscaping, or combination thereof.
f.
Mechanical equipment shall be adequately screened from the view of the residential drive, Appleton Avenue, and the Lilly Creek Nature Reserve through the means of architectural elements, landscaping, or combination thereof.
(2)
Building massing.
a.
Traditional massing forms and architectural elements shall be incorporated into the building designs.
1.
Appropriate forms and elements include gables, hips, bays, dormers, porches, balconies, canopies, etc.
b.
Flat roofs are not permitted.
c.
Gable ends shall have a minimum roof slope of 10:12, all other roof slopes shall have a minimum slope of 3:12.
d.
Varied building massing and roof heights, especially along building facades visible from the residential drive, Appleton Avenue and the Lilly Creek Nature Reserve, shall be encouraged. Long expanses of unbroken exterior facades and roof planes shall not be permitted.
e.
The use of awnings, colonnades, covered walkways, pergolas, etc. are permitted to create a more pedestrian friendly scale and add visual interest to buildings.
f.
Decks and/or balconies of wood or composite material are permitted with approval of the architectural control board.
(3)
Building fenestration (doors and windows).
a.
Primary building facades are those that face the residential drive, Appleton Avenue, and the Lilly Creek Nature Reserve.
b.
Secondary facades that do not front, but are visible from, the residential drive, Appleton Avenue, and the Lilly Creek Nature Reserve shall have fenestration patterns complementary to the building's primary facade. Large expanses of blank, windowless exterior walls shall not be permitted.
c.
All windows shall have traditional proportions with a vertical emphasis.
d.
All windows shall incorporate divided lights or simulated divided lights.
(4)
Building materials.
a.
Traditional materials, including traditional use and detailing, shall be solely used in the design of each building in the neighborhood edge district. A building's material palette shall include materials similar to other buildings located in the neighborhood edge and compatible with other buildings in the mixed residential and the commercial/retail districts in order to maintain a continuity of community.
b.
The primary materials that are appropriate for use in the neighborhood edge district are:
1.
Stone veneer (including manufactured stone).
2.
Brick veneer.
3.
Fiber-cement siding/trim.
4.
Wood siding/trim.
5.
Wood windows.
6.
Metal clad windows.
7.
Fiberglass roof shingles.
8.
Tile or slate roof systems.
9.
Metal roof systems for accent material only.
10.
Wood, fabric, or membrane awnings/canopies/pergolas, etc.
11.
Other materials approved by the architectural control board.
c.
The primary materials that are not appropriate for use in the neighborhood edge district are:
1.
Concrete masonry units (excluding foundation).
2.
Pre-cast or cast-in-place concrete (excluding foundation).
3.
Metal siding/trim systems.
4.
Metal panel systems.
5.
Glass/metal curtain wall systems.
6.
Storefront systems.
7.
Metal roof system (for primary roof areas).
8.
Vinyl siding.
9.
Vinyl windows.
10.
PVC siding/trim material.
11.
Other materials not listed in subparagraph b. above, and not approved by the architectural control board.
Figure 122-808.4 Neighborhood Edge District Architectural Image
(a)
Intent. It is essential to provide a pleasing and technically sound landscaped environment in the planned development zone.
(b)
Plan requirements. Landscape plans shall comply with the requirements of section 122-623.
(c)
Maintenance requirements. Shall comply with the requirements of this Code.
(1)
The owner(s), ownership group and/or community association shall be responsible for replacement of dead or unacceptable plant material.
(d)
Preservation of topography. Shall comply with section 38-113.
(e)
Avoidance of plant monocultures.
(1)
Plant monocultures are essentially environments that have only two or three varieties of main plant materials. This approach shall be rejected for the following reasons:
a.
It exposes the development zone to deforestation if a disease that attacks the primary plant material sweeps through the area.
b.
It provides less diversity of plantings for birds and wildlife.
c.
It has the visual effect of making the development too "formal" in appearance. Too much similarity in the plant materials can make the design unappealing.
(2)
Any landscaping plan (for a phase, individual property, individual building, etc.) that has more than 25 percent of any one type of species of shrub, evergreen tree, deciduous tree, annual, or perennial shall not be approved.
(f)
Minimum planting size general. Standards for plant size installation for those that are not indicated in subsections below. Plants specified for an approved vegetated stormwater control measure are exempt from the minimum size requirements of the subsections below.
(1)
Minimum sizes.
a.
Shade trees: three-inch caliper, four-inch preferred.
b.
Evergreen trees: six-foot height, eight-foot preferred.
c.
Evergreen and deciduous shrubs: 24-inch height or spread.
d.
Perennials: four-inch potted material minimum, groundcover: three-inch pots or bands.
(g)
Buffers.
(1)
Locations.
a.
Buffers shall be provided as indicated in figure 122-809.1.
Figure 122-809.1 Property Buffers
(2)
Transparent buffers.
a.
A transparent buffer is a landscape screening effect rather than absolute line of sight.
b.
Transparent buffering shall have the following minimum plantings.
1.
Deciduous trees. One tree per 45 linear feet.
2.
Evergreen trees. One per 50 linear feet.
3.
Shrubs. One per four linear feet.
4.
Other plantings (perennial flowers). One per one linear feet.
c.
Plant list. The following plantings are permitted for transparent buffers. Others species may be approved by the architectural control board on a case-by-case basis. Where a transparent buffer is proposed to incorporate vegetated stormwater control measures, the architectural control board may approve a combination of plantings and fencing that achieve a comparable degree of opacity to the plantings below.
1.
Deciduous trees. High branched, light canopied shade trees (such as: Thornless Honey Locust varieties, White Ash, Ginkgo, or similar).
2.
Evergreen trees (such as: Austrian and Scotch Pines, Colorado Spruce, White and Black Hills Spruce, Concolor fir, Upright Red and White cedars, or similar).
3.
Evergreen and deciduous shrubs (such as: Viburnums, Dogwoods, select Honeysuckle varieties, Lilacs, Amelanchiers and medium growth evergreen shrubs (Japanese Yews or Junipers), or similar).
4.
Perennials. Native and or hardy flower types typical in southern Wisconsin.
(3)
Non-transparent buffers.
a.
A non-transparent buffer is a landscape screening effect meant to "block" or visually impair the line of sight view of an object(s).
b.
Non-transparent buffers shall have the following minimum plantings.
1.
Deciduous trees. One per 35 linear feet.
2.
Evergreen trees. One per 40 linear feet.
3.
Shrubs. One per three linear feet.
4.
Other plantings (perennial flowers). One per one linear foot.
c.
Plant list. The following plantings are permitted for non-transparent buffers. Others species may be approved by the architectural control board on a case-by-case basis. Where a non-transparent buffer is proposed to incorporate vegetated stormwater control measures, the architectural control board may approve a combination of plantings, fencing and walls that achieve a comparable degree of opacity to the plantings below.
1.
Shade trees with heavy canopies (such as: Norway Maple varieties, Linden varieties, Oaks, Crabapples, Hawthorns, Ornamental Pears, or similar).
2.
Evergreen trees (such as: Austrian and Scotch Pines, Colorado Spruce, White and Black Hills Spruce, Concolor fir, Upright Red and White cedars, or similar).
3.
Massing and screening shrubs (such as: Viburnums, Dogwoods, select Honeysuckle varieties, Lilacs, Amelanchiers and medium growth evergreen shrubs, or similar).
(h)
Street tree requirements.
(1)
General requirements.
a.
Private streets must have consistent cover of deciduous shade trees for visual enhancement, providing shade, and contributing to the overall image of the development.
b.
Public streets or spaces require a similar consistent tree cover for visual enhancement. Public spaces would be considered those areas where pedestrians can gather to use the various amenities offered. These can be park-like zones, plazas, or other open spaces not necessarily associated with a private entity.
c.
Minimum size requirements are established as follows:
1.
Three-inch caliper or larger for shade trees at time of planting.
2.
Two to two and one-half inch caliper or greater for ornamental trees at time of planting.
d.
Evergreen trees are not permitted as a street tree.
e.
Street tree plantings shall have the following minimum plantings:
1.
Deciduous trees: one per 50 linear feet.
(2)
Market streets. (See figure 122-809.2).
a.
Design characteristics.
1.
Location. Planting schemes for market streets shall be simple in concept.
2.
Shade trees.
i.
One shade tree every 60 feet of street frontage.
ii.
Permitted species include: Thornless Honeylocust and cultivars, White Ash and cultivars, Ginko species, and Norway Maple and cultivars.
iii.
Minimum sizes (installed): two and one-half inch caliper minimum.
3.
Ornamental trees.
i.
May be utilized along roadways on the outside of sidewalks. They are prohibited in the sidewalk apron area. They shall not be located in a position that will block commercial storefronts or signage.
ii.
Permitted species include: Japanese Tree Lilac, Snowdrift Crabapples, Spring Snow Crabapple, Ornamental pear varieties, Thornless Cockspur Hawthorne, and other sterile flowering trees as approved.
Figure 122-809.2 Market Street Landscaping
(3)
Residential street/residential drive. (See figure 122-809.3).
a.
Design characteristics.
1.
Location. Trees shall be planted in the sidewalk apron area. Trees shall have a high arching branch habit. A greater variety of species shall be planted along the street.
2.
Shade trees.
i.
An average of one shade tree every 50 feet of street frontage shall be provided. Spacing shall be varied adjusted with regard to other site features (such as driveways, fire hydrants, intersections, crosswalks, etc.)
ii.
Permitted species include: Thornless Honeylocust and cultivars, White Ash and cultivars, Ginko species, Norway Maple and cultivars, Little leaf Lindens, and Green Ash cultivars or other species as approved.
3.
Ornamental trees.
i.
May be utilized along roadways when located along a sidewalk on the side opposite the sidewalk apron. They are prohibited in the sidewalk apron area. They shall not be located in a position that will create hazards for pedestrians or parking.
ii.
Permitted species include: Japanese Tree Lilac, Snowdrift Crabapples, Spring Snow Crabapple, Ornamental pear varieties, Thornless Cockspur Hawthorne, and Amelanchier species or similar.
Figure 122-809.3 Residential Street/Residential Drive Landscaping
(4)
Entry court. (See figure 122-809.4).
a.
Design characteristics.
1.
Location. Because of the narrow nature of the entrance courts, and the fact they accept two-way traffic, planting design in these areas must be minimal in quantity of trees, but relatively mature. A greater use of lower shrubs and groundcover is anticipated, along with more use of flowering trees instead of shade trees.
2.
Permitted species. The planting palette of materials shall consist of shade trees, ornamental trees, deciduous/evergreen shrubs, perennials, and turf.
3.
Shade trees.
i.
An average of one shade tree every 50 feet of street frontage shall be provided within areas that have a sidewalk apron. Spacing shall be varied adjusted with regard to other site features (such as driveways, fire hydrants, intersections, crosswalks, etc.).
ii.
Permitted species include: Thornless Honeylocust and cultivars, White Ash and cultivars, Ginko species, Norway Maple and cultivars, Little leaf Lindens, and Green Ash cultivars, or similar.
4.
Ornamental trees.
i.
May be utilized in spaces between the shade trees. Planting design shall have an appearance of a natural setting rather than a formal landscaping style.
ii.
Permitted species include: Japanese Tree Lilac, Snowdrift Crabapples, Spring Snow Crabapple, Ornamental pear varieties, Thornless Cockspur Hawthorne, and Amelanchier species or similar.
5.
Shrubs and groundcovers.
i.
Flowering shrubs, evergreen shrubs, and broadleaf evergreen groundcovers shall be used to create landscaping features in the entry court areas.
ii.
Permitted species include: Spirea cultivars, Juniper (chinensis compact)cultivars, Shrub rose cultivars, Japanese yew cultivars, Daylily cultivars, Sedum Cultivars, Rudbeckia cultivars, Pachysandra, Purpleleaf Wintercreeper, and Lamiastrum or similar.
Figure 122-809.4 Entry Court Landscaping
(i)
Parking lot screening. (See figure 122-809.5).
(1)
Design characteristics. The standards below are intended to provide for attractive, layered landscaping and visual screening of all parking areas.
a.
Planting schemes shall provide deciduous shade trees, evergreen trees, ornamental trees, and lower level shrub materials that provide non-transparent buffers with the following minimum plantings:
1.
Deciduous trees: one per 35 linear feet.
2.
Evergreen trees: one per 40 linear feet.
3.
Shrubs: one per three linear feet.
4.
Other plantings: (perennial flowers) one per one linear feet.
b.
Year round visual screen for parking areas. Plants shall be layered to affect a visual baffle as they grow together. For example: shade trees and evergreen trees are fronted with lower shrubs and flowering shrubs to create screening form the ground up.
c.
Screening shall be provided around the entire perimeter of all parking lots. Screening within entry courts shall be provided from all public and private streets.
d.
Spacing of trees and shrubs per 100 linear feet.
1.
Shade trees: one tree for every 40 to 60 feet center to center.
2.
Evergreen trees: one tree for every 15 to 20 feet spacing.
3.
Upright Cedar evergreens: one for every seven to 12 feet spacing.
4.
Shrub materials: one for every three feet to eight feet spacing.
Figure 122-809.5 Parking Lot Screening
(j)
Market Plaza landscaping. (See figure 122-809.6).
(1)
Minimum planting size.
a.
Deciduous trees: four-inch caliper minimum.
b.
Ornamental trees: three-inch caliper minimum.
c.
Evergreen trees: eight-foot height minimum.
d.
Evergreen shrubs: 18-inch height minimum.
e.
Deciduous shrubs: 18-inch spread minimum.
f.
Perennials: four-inch potted minimum.
(2)
Design characteristics.
a.
The plaza shall be designed as an urban plaza with brick, concrete or other high-quality surfacing, site amenities such as benches, trash receptacles, fountain art of similar focal point element, lighting and graphics. The overall design character of the space shall have a formal landscape design style.
b.
Pedestrian scale and comfort shall be provided at every level of the design of the area.
c.
There shall be extensive use of planter areas with shrubs, evergreens and groundcovers, similar to the materials used in the entry courts (see subsection (h)(4)).
d.
Trees shall be a combination of shade trees, ornamentals and evergreen trees.
1.
Shade trees.
i.
One tree per 350 square feet of paved area.
ii.
Permitted species include: Thornless Honeylocust and cultivars, White Ash and cultivars, Ginko species, Norway Maple and cultivars, Little leaf Lindens, and Green Ash cultivars or similar.
2.
Ornamental trees.
i.
May be utilized in spaces between the shade trees.
ii.
Permitted species include: Japanese Tree Lilac, Snowdrift Crabapples, Spring Snow Crabapple, Ornamental pear varieties, Thornless Cockspur Hawthorne, and Amelanchier species or similar.
3.
Shrubs and groundcovers.
i.
To bring the plaza to a more intimate scale, shrubs and groundcovers shall be used. Flowering shrubs, evergreen shrubs, and broadleaf evergreen groundcovers shall be used to provide color, texture and interest to the ground plane.
ii.
Permitted species include: Spirea cultivars, Juniper (chinensis compact)cultivars, Shrub rose cultivars, Japanese yew cultivars, Daylily cultivars, Sedum Cultivars, Rudbeckia cultivars, Pachysandra, Purpleleaf Wintercreeper, and Lamiastrum or similar.
4.
Perennials and annuals.
i.
Perennials and annuals shall be used throughout the plaza areas in planting beds and planters.
ii.
Permitted species would include grasses and wildflowers considered native to the upper Midwest region.
Figure 122-809.6 Market Plaza Landscaping Concepts
(k)
Lilly Creek Nature Reserve landscaping.
(1)
Landscaping in environmentally defined areas.
a.
Landscaping within defined wetlands and floodplains shall require approval of the Wisconsin DNR prior to approval by the village.
b.
All plantings within defined wetlands and floodplains if permitted by Wisconsin DNR and village shall be native plantings.
(2)
Landscaping in non-environmentally defined areas.
a.
General requirements.
1.
Deciduous trees. Minimum sizes (installed): three and one-half inch caliper minimum for deciduous trees.
2.
Evergreen trees: eight-foot height for evergreen material.
3.
Ornamental trees: sizes to be four-inch caliper (or ten-foot height) minimum.
(3)
Design characteristics.
a.
The use of native tree and shrub species, along with more random placements shall be provided. Emphasis shall be to provide deciduous and evergreen trees. The use of natural grasses shall also occur for stormwater runoff reduction and wildlife habitat enhancement as well as for visual effect.
1.
Shade trees.
i.
Minimum requirements: one shade tree per 750 square feet.
ii.
Permitted species include: Thornless Honeylocust and cultivars, White Ash and cultivars, Sugar Maple, Norway Maple and cultivars, American Lindens, Green Ash cultivars, Willow cultivars, Colorado Spruce, Norway Spruce, and Tamarack or Larch, or similar.
2.
Ornamental trees.
i.
Minimum requirements: one tree per 1,500 square feet.
ii.
More informal groupings are encouraged.
iii.
Permitted species include: Japanese Tree Lilac, Snowdrift Crabapples, Spring Snow Crabapple, Ornamental pear varieties, Thornless Cockspur Hawthorne, and Amelanchier species or similar.
3.
Shrubs and groundcovers.
i.
Native materials are recommended.
ii.
Permitted species include: Viburnum cultivars, Juniper (chinensis compact)cultivars, Shrub rose cultivars, Dogwood cultivars or similar.
(l)
Irrigation.
(1)
Irrigation within the nature reserve landscape area is not required, with the exception of establishment of plant material.
(2)
The areas in and around commercial, retail, service and residential developments shall have fully automatic irrigation systems installed for turf areas and these systems shall be maintained in good repair.
(3)
Irrigation systems that are for planting beds and planters shall be maintained in good repair.
(a)
General requirements.
(1)
Permitted site amenities/furnishings.
a.
The following site amenities/furnishings shall be permitted:
b.
Benches and seating.
c.
Trash receptacles.
d.
Advertising kiosks and newspaper boxes.
e.
Landscaping planters.
f.
Bicycle racks (see section 122-805).
g.
Site lighting (see section 122-811).
h.
Other furnishing approved by the village architectural control board.
(2)
Design continuity.
a.
Site amenities shall be coordinated to create a visually unified streetscape and to minimize streetscape clutter.
b.
Site amenities shall be coordinated with site lighting, site signage, etc. to minimize streetscape clutter.
(3)
Miscellaneous requirements.
a.
Site amenities shall be located as not to impede with or create hazards for pedestrians or vehicles.
b.
Site amenities shall be securely anchored to the ground or building.
c.
Site amenities shall be designed for universal use.
d.
Site amenities shall not be located within defined floodplains or wetlands.
(b)
Benches and seating.
(1)
Location.
a.
Benches and seating for pedestrians are permitted at the following locations:
b.
Street sidewalks or immediately adjacent to street sidewalks;
c.
Sidewalks and plazas located in open space areas, including, but not limited to, those dedicated open space areas required per section 122-803;
d.
Along the trail system in the Lilly Creek Nature Reserve.
(2)
Design/style.
a.
Benches and seating shall be of the following styles or other visually similar design approved by the architectural control board.
b.
In all areas, except the Lilly Creek Nature Reserve, benches and seating shall be selected from the Landscape Forms, Inc. "Presidio" Collection (see figure 122-810.1) or similarly designed style(s) approved by the village architectural review board.
c.
Along the Lilly Creek Nature Reserve trails, benches and seating that incorporate wood and other natural materials are permitted with approval of the village architectural review board (see figure 122-810.2).
Figure 122-810.1 Permitted Benches and Seating
Figure 122-810.2 Stylistic Examples of Permitted Lilly Creek Trail Benches and Seating
(c)
Trash receptacles.
(1)
Location.
a.
Trash receptacles shall be permitted at the following locations:
b.
Within the sidewalk apron of all streets.
c.
Sidewalks and plazas located in open space areas, including, but not limited to, those dedicated open space areas required per section 122-803.
d.
Along the trail system in the Lilly Creek Nature Reserve.
(2)
Design/style.
a.
Trash receptacles shall be of the following styles or other visually similar design approved by the architectural control board.
b.
In all areas, except the Lilly Creek Nature Reserve, trash receptacles shall be selected from the Landscape Forms, Inc. "Presidio" Collection (see figure 122-810.3) or similarly designed style(s) approved by the village architectural review board.
c.
Along the Lilly Creek Nature Reserve trails, trash receptacles that incorporate wood and other natural materials are permitted with approval of the village architectural review board (see figure 122-810.4).
Figure 122-810.3 Permitted Trash Receptacles
Figure 122-810.4 Stylistic Example of Permitted Lilly Creek Trail Trash Receptacles
(d)
Advertising kiosks and newspaper boxes.
(1)
Advertising kiosks and newspaper boxes may be permitted with the approval of the village architectural review board.
(2)
Locations.
a.
Advertising kiosks and newspaper boxes are permitted only at the following locations:
b.
Market Street sidewalk areas;
c.
Market Plaza.
(3)
Quantity.
a.
Advertising kiosks shall be limited to a total of three structures within the PDO-1.
b.
Newspaper boxes shall be located in groups and shall be limited to no more than three group locations. They shall be located with advertising kiosks whenever possible.
(4)
Design/style.
a.
Advertising kiosks and newspaper boxes shall be integrated into the design of the Market Street streetscapes and Market Plaza and shall be approved by the village manager or designee.
b.
Advertising kiosks and newspaper boxes shall be of complementary design, and of similar materials, to other site furnishings and adjacent buildings and shall be approved by the village manager or designee.
(e)
Landscaping planters.
(1)
Landscaping planters may be permitted.
(2)
Location.
a.
Landscaping planters are permitted only at the following locations:
b.
Market Street sidewalk areas.
c.
Market Plaza.
d.
Other locations approved by the architectural control board.
(3)
Quantity. The minimum and/or maximum number of landscaping planters will be defined by the architectural review board as part of the approval of the precise implementation plan(s) for the buildings within the commercial/retail district.
(4)
Design/style. Landscaping planters shall be of complementary design, and of similar materials, to adjacent buildings.
(a)
General requirements.
(1)
Exterior lighting usage. Exterior lighting shall be used for the following:
a.
Street.
c.
Pedestrian.
c.
Parking.
d.
Landscaping and architectural features.
(2)
Design continuity.
a.
Light fixtures, poles, etc. shall be coordinated to create a visually unified streetscape.
b.
Light fixtures, poles, etc. shall be complimentary in design to the architecture, site amenities, and other site furnishings of the PDO-1.
c.
Exterior lighting shall be coordinated with traffic signs, street signs, etc. to minimize streetscape clutter.
d.
Light poles shall be of similar design/materials, have decorative/articulated bases, and comprised of pre-finished aluminum, steel, or concrete.
e.
Banner or plant hanging standards are permitted on site lighting poles.
f.
Sound systems may be integrated into the lighting fixtures within the commercial/retail district only.
(3)
Illumination control. Exterior lighting shall be designed, located, and focused as to not project glare or excessive levels (greater than 0.9 foot-candles) of illumination on to adjacent properties, buildings, or open spaces; and not project light above the horizontal plane so as to illuminate the night sky, except for floodlights, security lights, and the lighting of architectural and landscape features.
(4)
Plan submittal. All lighting plans shall be submitted for review and shall include a site plan, lighting specifications (for fixtures, poles, and other elements), and photometric plan. All plans shall be submitted by a certified professional engineer.
(5)
Miscellaneous requirements. Exterior lighting shall be located as not to impede with or create hazards for pedestrians or vehicles and shall be prohibited within the Lilly Creek Nature Reserve.
(b)
Commercial/retail district and mixed residential district lighting. Exterior building lighting in the commercial/retail and mixed residential districts shall be integrated into the overall design of the building, with the fixtures of a complementary design to the building architecture, and limited to the following purposes:
(1)
Accent lighting to highlight specific architectural building elements.
(2)
Signage lighting to illuminate building signage.
(3)
Pedestrian lighting to illuminate outdoor spaces associated with a building.
(c)
Neighborhood edge district lighting. Exterior building lighting in the neighborhood edge district shall be integrated into the overall design of the building, with the fixtures of a complementary design to the building architecture, and limited to the following purposes:
(1)
Accent lighting to highlight specific architectural building elements and address signage.
(2)
Pedestrian lighting to illuminate outdoor spaces associated with a building.
(d)
Private street lighting. Street lighting shall be designed to meet the requirements as outlined in figure 122-811.1 below.
Figure 122-811.1 Street Lighting Requirements
(e)
Pedestrian area and walkway lighting.
(1)
Location. Exterior lighting for pedestrians shall be located along all sidewalks, within the Market Plaza, and other areas specifically designed for pedestrian use (see sections 122-803 and 122-804).
(2)
Pedestrian lighting requirements. Lighting for pedestrian areas shall be designed to meet the requirements as outlined in figure 122-811.2 below.
Figure 122-811.2 Pedestrian Lighting Requirements
Figure 122-811.3 Permitted Pedestrian Lighting Styles
(f)
Parking lot lighting.
(1)
Location. Parking lot lighting shall be provided in the exterior parking areas that serve to meet the parking requirements of the commercial/retail district.
(2)
Parking lighting requirements. Parking lot lighting shall be designed to meet the requirements as outlined in figure 122-811.4 below, and coordinated with Market Street lighting, found in subsection (b) above, so as to not exceed maximum illumination levels.
Figure 122-811.4 Parking Lot Lighting Requirements
Figure 122-811.5 Street and Parking Light Fixture Style
(g)
Landscaping and architectural lighting.
(1)
Landscaping and architectural lighting shall be permitted in the following areas:
a.
At entries and/or gateways of the PDO-1 to illuminate gateway signage and associated landscaping elements (see subsection 122-812(f)).
b.
To highlight interesting or unique architectural elements or focal points as they relate to the overall building design or the PDO-1 as a whole.
c.
To highlight interesting or unique landscaping elements or focal points as they relate to the overall landscaping plan or the PDO-1 as a whole.
d.
Other areas as approved by the architectural control board.
(2)
Landscaping and architectural lighting shall be ground or building mounted with the light source being concealed from direct viewing.
(a)
General requirements. The following design standards apply to signage within PDO-1.
(1)
Address signage shall comply with the requirements of this Code.
(2)
Permits for signs are required per chapter 78 of this Code. Permits are not required for all private street signs and private traffic signs.
(3)
Prohibited signage includes:
a.
Freestanding signs, except for group development signage;
b.
Other signage prohibited in subsection 78-6(1).
(b)
Commercial/retail building signage.
(1)
Design standards.
a.
Wall signage shall be integrated into the overall design of the building at the time of building approval.
b.
Awnings, canopies, permanent/seasonal banners, etc., which have readable copy and logos shall have colors, fonts, and overall design elements coordinate with the overall aesthetics of the building.
c.
Illumination.
1.
If illuminated, wall and address signage shall be externally or back lit.
2.
Internally illuminated "box" signs are not permitted.
3.
If illuminated, awnings, canopies and permanent/seasonal banners shall be externally lit.
d.
Materials.
1.
No foamboard, fiberglass, vinyl, plastic, or PVC signage is permitted unless approved by the architectural control board.
(2)
Sign regulations.
a.
Wall signs shall be limited to one sign per street frontage or public plaza for each tenant location as approved in a master sign program. Street frontage in this instance shall refer to public and private street(s).
b.
Wall signs shall comply with subsection 78-6(3)(a)(2) of this Code.
c.
Freestanding signs shall comply with subsection 78-6(3)(a)(3) of this Code.
d.
Window signs shall comply with subsection 78-6(3)(a)(4) of this Code.
e.
Awnings, canopies, permanent/seasonal banners, which have readable copy and logos shall be considered part of the building signage. Copy and logos shall only be located on the fringe band of awnings and canopies. The area of the copy on such elements shall count towards the maximum permitted area for wall signs and may be cumulative. The total area of all wall signs, awnings, canopies signs, permanent/seasonal banners shall not exceed the square footage requirements of section 78-6 of this Code.
f.
Temporary signage shall comply with subsection 78-6(7) of this Code.
(c)
Mixed residential building signage.
(1)
Design standards.
a.
Wall signage shall be integrated into the overall design of the building at the time of building approval.
b.
Awnings, canopies, permanent/seasonal banners, etc., which have readable copy and logos shall be considered part of the building signage.
c.
Illumination.
1.
If illuminated, building and address signage shall be externally or back lit.
2.
Internally illuminated "box" signs are not permitted.
d.
Materials.
1.
No foamboard, fiberglass, vinyl, plastic, or PVC signage is permitted unless approved by the architectural control board.
(2)
Sign regulations.
a.
Wall signs:
1.
Commercial/retail uses shall comply with subsection 78-6(3)(a)(2) of this Code.
2.
Residential uses shall comply with section 78-7 of this Code.
b.
Freestanding signs:
1.
Commercial/retail uses shall comply with subsection 78-6(3)(a)(3) of this Code.
2.
Residential uses shall comply with section 78-7 of this Code.
c.
Window signage shall comply with subsection 78-6(3)(a)(4) of this Code.
d.
Awning, canopies, and banners shall only be permitted for commercial/retail uses within the mixed residential development and shall count as part of the overall permitted signage for the use. Such signage shall comply with subsection 78-6(3)(b)(1) of this Code.
e.
Temporary signs shall comply with subsection 78-6(7) of this Code.
(d)
Neighborhood edge building signage.
(1)
Design standards.
a.
Address signage shall be integrated into the overall design of the building and located at the pedestrian level of the building, in close proximity to the primary entrance of the respective address.
b.
If illuminated, address signage shall be only externally lit.
c.
No foamboard, fiberglass, vinyl, plastic, or PVC signage is permitted unless approved by the architectural control board.
(2)
Sign regulations.
a.
Awnings, canopies, etc. shall not contain text or graphics.
b.
Permanent window graphics are not permitted.
c.
Signage shall comply with sections 78-6 and 78-7 of this Code.
(e)
Development signage.
(1)
Types of signage: Site signage shall be permitted for the following:
a.
Gateway signage/monument signage.
b.
Street signage.
c.
Traffic signage.
(2)
Design standards.
a.
Site signage shall be complimentary in design to the architecture, site amenities, and other site furnishings of the PDO-1.
b.
Site signage shall be coordinated with site lighting, site amenities, etc. to create a unified development and to minimize streetscape clutter.
(3)
Miscellaneous requirements.
a.
Site signage shall be located as to not impede with or create hazards for pedestrians or vehicles.
b.
Site signage shall be securely anchored to the ground or building.
(f)
Gateway and monument signage. Shall comply with subsection 78-6(3)(b)(6) of this Code.
Figure 122-812.1 Examples of Acceptable Monument Signs
(g)
Private street signage.
(1)
Sign permits are not required for street signage. Approval of street signage shall occur with a master sign program for the overall PDO-1.
(2)
Location.
a.
Street signage is required at the following locations:
1.
The intersection of the residential drive and Appleton Avenue;
2.
The intersection of the residential drive and the residential street;
3.
The intersection of the residential street and the market street.
b.
Street signage is permitted at all road/street intersections not listed above.
(3)
Design standards.
a.
Street signage shall be coordinated with, and may be incorporated onto, street lighting poles.
b.
Street signage shall not exceed a height of 12 feet above the adjacent ground plane.
c.
No foamboard, fiberglass, vinyl, plastic, or PVC signage is permitted unless approved by the architectural control board.
d.
Street signage shall incorporate light reflective lettering for street names.
(4)
Illumination.
a.
Internally illuminated signs are not permitted.
b.
Street signage shall only be illuminated by the general light levels of the streetlights and by vehicular traffic lights.
(h)
Private street traffic signage.
(1)
Design standards.
a.
Traffic signage shall be coordinated with, and be incorporated onto, street lighting and/or street signage poles.
(2)
Illumination.
a.
Street signage shall only be illuminated by the general light levels of the streetlights and by vehicular traffic lights.
(a)
Introduction. Successful communities leverage their land use, open space, and transportation plans in a manner which creates a clear sense of scale, transition, and activity towards a hierarchy in strong and memorable community experiences. The foundation of such a hierarchy is the creation of development districts that form a positive collective identity when viewed in total. To achieve such a positive end result, each district should have a unique character defined through its land use mix and physical design.
Recognizing that the central portion of Main Street in their community lacked such a recognizable character and had regulations which might only compound this challenge, the village prepared a vision for the Main Street redevelopment area generally bounded on each side by the Main Street/Highway 41/45 interchange and the Main Street/Pilgrim intersection. This vision was prepared through a process infused with public input and calls for a collection of land uses positioned to provide a more sustaining mix of uses and activities than current development generally affords. This area, now known as the Main Street redevelopment district, intends a rich tapestry of neighborhood identities encouraging new development and redevelopment.
(1)
The community also recognizes that a key area along the freeway was lacking in a recognizable character and facing future changes to land use as older industrial structures become obsolete. The village prepared the northeast area neighborhood plan, which was adopted as a component of the comprehensive plan for the village. This vision was prepared through a process with public input and calls for a collection of land uses positioned to provide a sustaining mix of uses along the 41/45 corridor. This area is commonly referred to as the Richfield Way Extension.
(2)
In order to implement these visions, the design standards affecting development are intended to be consistent with the vision behind their intent. To accomplish this goal, the Main Street redevelopment district has been subdivided into a series of development sub-districts and the development restrictions that will be necessary to achieve their collective individuality.
(b)
Purpose. The purpose of these standards is to define the character of new development within each sub-district and is intended to help create new development patterns that are consistent with the vision and recommendations of the village comprehensive plan and Main Street redevelopment plan. These guidelines have been written to define specific standards necessary towards the creation of a mixed use, streetscape-oriented development. They have been carefully designed to allow enough flexibility for creative building solutions, while being prescriptive in areas necessary to preserve consistency the Main Street district requires.
(c)
Goals.
(1)
Encourage private investment in residential, commercial and office developments.
(2)
Eliminate blighting influences.
(3)
Diversify the local economy through tax base and job creation.
(4)
Create a well-planned, safe and healthful area.
(5)
Provide cleared and fully improved sites for mixed use projects to include residential, commercial and office development.
(6)
Improve traffic and pedestrian circulation linking new development with established adjacent residential neighborhoods.
(7)
Improve stormwater facilities and integrate stormwater management into landscaped areas.
(8)
Provide opportunities for multiple types of upscale housing.
(d)
Intent.
(1)
To provide a comfortable and attractive environment for pedestrians which include such things as buildings framing public space, street trees, lighting and awnings that will attract pedestrians and public activities.
(2)
To construct buildings close to the sidewalk and street.
(3)
To construct continuous building frontage along block faces except where it is desirable to provide for pedestrian and auto pass-throughs to parking at mid-block.
(4)
To provide shared parking both on-street and in the center of blocks that will benefit the entire district.
(5)
To contribute to the definition and use of public parks and plazas.
(6)
To design streets and buildings that will create a safe environment.
(a)
Authority. A regulating plan is the coding key for application of this district's provisions to properties, and shall be considered part of this zoning district.
(b)
Regulating plan. The PDO-2 is divided into three different districts.
Figure 122-821.1 Regulating Plan
(c)
Master plan. The master plan for the PDO-2 shall meet the following site development requirements within each sub-district:
(1)
Falls Parkway sub-district. This area emphasizes the transition of uses from the highway to the existing residential areas to the south. It is the vision of this area to provide a newly created street extension that will integrate commercial developments with mixed-commercial and multi-family residential uses.
This pattern of redevelopment will provide better connections between the higher intensity commercial uses and lower intensity residential uses. This sub-district employs an area for the more intense commercial uses along the highway frontage, and an area for properties making a connection from adjacent neighborhoods.
Figure 122-821.2 Falls Parkway Sub-District Area Classifications
a.
Commercial. Retail, restaurant, office uses.
b.
Mixed use. Multi-family, retail, restaurant, office uses.
c.
Multi-family. Multi-family with total unit counts between 315—335.
(2)
Main Street sub-district. This area is planned for commercial and residential uses that blend with existing commercial and residential developments.
Figure 122-821.3 Main Street Sub-District Area Classifications
a.
Commercial. Retail, restaurant, office uses.
b.
Mixed use. Multi-family, retail, restaurant, office uses with densities up to 20 units per acre.
c.
Single-family. Single-family houses with densities up to six units per acre.
(3)
East of the highway sub-district. This area is planned for commercial and light industrial uses that blend with existing abutting uses.
Figure 122-821.4 East of the Highway Sub-District Area Classifications
a.
Commercial. Retail, restaurant, office, and medical uses.
b.
Industrial. Machinery or equipment wholly enclosed within a building compatible with first class corporate and professional offices, office, and medical uses.
Figure 122-822.1 Circulation Plan
(a)
Planned streets and circulation systems. All roads shall be planned according to Figure 122-822.1.
(b)
Street pattern. The precise location of streets shall be determined in conjunction with approval of the concept and development plans.
(c)
Ownership. All roads within the PDO-2 shall be public roads unless otherwise approved by the village board as a private street.
(d)
Sidewalks. Sidewalks and pedestrian connections shall be installed in conjunction with the construction of new streets and new developments in accordance with figure 122-822.1.
(a)
Landmarks.
(1)
The PDO-2 has a number of key landmark structures that help define gateways and a unique place. The landmark buildings shall have key features and elements designed to complement the adjoining public spaces. Examples include those identified in figures 122-823.1 through 122-823.4.
a.
Landmark buildings. A building which is located on axis with a terminating street, or a street intersection or focal point. Such buildings shall incorporate architectural feature which address height and articulation that emphasize the important of such a location.
b.
Landmark gateways. A gateway which is an entry to a commercial development, intersection, node or other identifiable place that has distinguishing features which may include all or a number of the following: architecture with unique building features such as special corner treatments, enhanced streetscape features such as pavement or lighting, specialized landscaping features that create a place, landscape plantings that are used to create a place.
c.
Landmark building features. The feature may include a tower element, unique patterning of facade, bay or bow window element, building element with a height variation from the rest of the building, as well as other solutions.
d.
Determination. When there is a question as to landmark elements the item shall be referred to the architectural control board for interpretation.
Figure 122-823.1 Example of a Landmark Building with a defined corner tower Treatment
Figure 122-823.2 Example of a Landmark Building with a defined corner entry
Figure 122-823.3 Example of a Landmark Building with a defined corner towner element
Figure 122-823.4 Example of a Landmark Building with a corner setback from street
(2)
Locations of landmarks. The locations of landmarks shall at a minimum be located as defined in figures 122-823.5, 122-823.6 and 122-823.7.
Figure 122-823.5 Landmark Building and Feature Map in the Falls Parkway Sub-District
Figure 122-823.6 Landmark Building and Feature Map in the Main Street Sub-District
Figure 122-823.7 Landmark Building and Feature Map in the East of Highway Sub-District
(a)
Principal uses.
(1)
Commercial.
a.
Service, general and regional retail, restaurant without drive-through, office, medical, and mixed use residential buildings or structures.
b.
Restaurants with outdoor dining are subject to:
1.
All outdoor furniture shall be of a material other than molded plastic.
2.
Outdoor dining areas shall be kept free of litter at all times.
3.
Outdoor furniture and equipment shall be compactly stacked on a nightly basis and secured in a manner that furniture cannot leave the outdoor dining area.
4.
All furniture associated with outdoor dining shall be removed between November 1 and March 1.
(2)
Residential. Single-family, apartments, condominiums, and live-work units.
(3)
Mixed use. Any combination of commercial or residential uses.
(4)
Light industrial. Office, manufacturing, processing and assembly of products with machinery and equipment wholly enclosed within a building, and an exterior appearance compatible with first class corporate and professional offices.
(b)
Conditional uses. Conditional uses shall be required per article IV of this chapter.
(c)
Prohibited land uses. Any land use that is hazardous, harmful, noxious, offensive or a nuisance to the surrounding neighborhood.
(a)
East side of highway. Landscaping shall be continuous along block faces within this sub-district to create an attractive development adjacent to the freeway corridor. Landscaping shall be the predominate feature viewed from the street, creating a park-like setting for pedestrians.
(b)
Street extensions. Variation and opportunities for outside dining, pocket parks, lawns, gardens, and special building entry features.
(c)
Parking. Parking areas shall not be exposed to the streetscape and shall require walls, berms, vegetation or a combination for screening.
(d)
Facades. Facades shall generally be built parallel to the street frontage, except at street intersections, where a facade containing a primary building entrance may be curved or angled toward an intersection. Where a street frontage is an actual curve, the building facade shall curve with the right-of-way, or have steps and other architectural elements built into the design to define the right-of-way.
(e)
Private streets and internal circulation. Private streets and internal circulation areas that are designed to accommodate vehicles and pedestrians shall comply with the criteria within this section. Connections to allow easy pedestrian and vehicular access for the existing neighborhoods to the Falls Parkway redevelopment area shall be made.
(f)
Setbacks.
(1)
Accessory structures. Accessory structures shall be located behind the principal building with a minimum setback of five feet from all lot lines.
(2)
Fences. Setbacks for fences shall comply with subsections 122-669(1), (2), and (4) of this Code.
(a)
Intent.
(1)
It is the intent of this section to create an attractive and active village-style district. The size, disposition, function and design of buildings play an important role in achieving that goal.
(2)
Buildings shall directly contribute to the attractiveness, safety and function of the street and public areas.
Figure 122-826.1 Building Architecture Should Address the Street and Engage the Pedestrian
(3)
Buildings that accommodate first-floor retail shall feature architectural elements that allow for pedestrian-style retail activity.
(4)
Buildings shall be constructed in a manner, and with materials, that are highly durable, will continue to endure and be attractive over a long period of time, especially adjacent to public and pedestrian areas.
Figure 122-826.2 Residential Architecture Shall Create a Village Character, While
Addressing the Streetscape
(5)
It is intended by this zoning district to encourage a variety of building and design solutions in response to the standards and regulations outlined herein.
(b)
Building form.
(1)
Human scale. Building façades fronting public streets, private streets, and driveways shall have massing changes and architectural articulation to provide visual interest and texture to avoid oversimplified one-dimensional façades lacking human scale.
(2)
Architectural elements. Architectural elements including projecting volumes, windows, balconies, loggia, canopies, pediments, and moldings that break up the mass of the building are required.
(3)
Tripartite architecture. All buildings shall be designed and constructed to emphasize tripartite architecture that have a distinct "base, mid-section, and top."
a.
General.
1.
Base. The base of all buildings within this district shall have a minimum height of three feet.
2.
Middle. The middle portion of the building is the area from the base to the top.
3.
Top. The top of all buildings shall have an articulated cornice element. In the case of buildings with a mansard, gabled, or pitched-style roof the roof shall act as the top. Buildings that have a flat roof with parapet shall have the cornice and parapet defining the top.
Figure 122-826.3 Large Commercial Building Showing Tripartite Architecture
Figure 122-826.4 Small Commercial Building Showing Tripartite Architecture
b.
Mixed-use commercial districts. The base of all buildings within this district shall have a minimum height of three feet and may, at a maximum, articulate the entire first floor as a base.
Figure 122-826.5 First Floor Base
c.
Mixed-use residential districts. Buildings that are greater than two stories may articulate the entire first floor as a base.
d.
Commercial districts. Buildings with this district shall employ a strong base that relate to human scale. The base of the building shall have minimum height of three feet.
e.
Medium density and low density residential. The base of a structure within these areas shall be a simple foundation with a brick or brick-like finish. The base shall not include the first floor.
(c)
Windows.
(1)
All windows shall have a vertical proportion.
Figure 122-826.6 Example of Windows with Vertical Proportions
Figure 122-826.7 Example of Windows Vertical Proportions
Figure 122-826.8 Example of Windows with Horizontal Proportions that are not permitted
Figure 122-826.9 Windows with Minimum Four-Inch Reveal
Figure 122-826.10 Windows with Minimum Four-Inch Reveal
(2)
No reflective glass is allowed. Tinted glass that allows for vision into and out of the structure is allowed with approval by the architectural control board.
(3)
No exterior security elements shall be permitted. Window security shall be through electric or other technical means.
(d)
Entries and doors.
(1)
Mixed used.
a.
Each building and separate lease space at grade along a street edge shall have a functioning primary entry from the sidewalk.
(2)
Commercial.
a.
Each building and separate lease space at grade along a street edge shall have a functioning primary entry from the sidewalk.
b.
Secondary entries may not be inset less than three feet. Entries at alleys and service doors require no inset.
c.
Corner entries may count as a primary entry for both intersecting street frontages.
(3)
Residential. All buildings for residential uses shall have a primary entrance from the sidewalk.
(e)
Architectural building elements.
(1)
Awnings. An awning may be located over doors, windows and entries to protect storefronts from sunlight, and pedestrians from inclement weather.
a.
Awning construction and design standards.
1.
Awnings are allowed to project six to eight feet and must have a minimum clearance of seven feet from grade, except as regulated in subsection (f)(1)a.8. of this section.
2.
Awnings must be professionally constructed of canvas or metal and cannot be made of vinyl.
3.
All internal support structures must be made of metal and painted or finished to coordinate with the awning color and coloration of the building or storefront.
4.
Panels enclosing the underside of an awning are not permitted.
5.
In no case can the supporting structure of an awning extend into or over the street curb. Awnings must end a minimum of two feet from the curb edge. In instances where an awning encroaches into areas where streetlights, trees or other obstacles in the streetscape conflict, the awning must be reduced in size (overhang) so as to eliminate the conflict.
6.
Awnings may be lighted from above with lighting affixed to the building. All lighting must be shielded to prevent the light from shining directly into traffic, upper floor windows or pedestrians' eyes.
7.
The awning may not be internally illuminated.
(2)
Canopies. A canopy is a covered area which extends from a wall of a building, protecting an entrance.
a.
Canopy construction and design. Canopies may be made out of wood, metal or glass, but all support structures must be made of metal.
1.
Canopies are allowed to project over a sidewalk to a maximum of six to eight feet and must have a minimum clearance of seven feet from grade except as required in subsection (4) of this section.
2.
Canopies may have side panels, and may have a panel enclosing the underside of the canopy.
3.
Canopies may be lit from above with lighting affixed to the building. All lighting must be shielded to prevent the light from shining directly into traffic, upper floor windows or pedestrians' eyes.
Figure 122-826.11 Example Use of Canopy
4.
In no case can the supporting structure of a canopy extend into or over the street curb. Canopies must end a minimum of two feet from the curb edge. In instances where canopies encroach into areas where streetlights, trees or other obstacles in the streetscape conflict, the canopy must be reduced in size (overhang) so as to eliminate the conflict.
(3)
Building lighting. Building illumination is an important element of creating a unique feeling in the evening hours. Building illumination is encouraged within this district provided the lighting addresses the following:
a.
Building lighting shall not be designed or installed in such a manner that the light shines directly into traffic, upper floor windows, or pedestrians' eyes.
b.
Illumination shall provide an overall warm appearance and the lighting shall not create "hot spots" on the façade.
c.
All canopies shall have recessed lighting where the light fixture is not visible.
d.
Lighting elements such as conduit, electrical wiring, connection boxes, and transformers shall not be exposed.
Figure 122-826.12 Example of Building Lighting
(4)
Landmark buildings, building elements, and structures. Landmark buildings shall be articulated by one or more of the following elements:
a.
Offsets from the front wall plane.
b.
Elements extending above the main building eave or parapet line.
c.
Elements with special nighttime lighting effects.
d.
Defining the architectural element by using a complementary but slightly different building material.
e.
Designed to have a unique massing such as a tower, bay, curved wall, or other unique shape.
Fighe 122-826.13 Use of Unique Massing on a Landmark Building
(f)
External façade materials and design.
(1)
Intent. The material requirements described herein are intended to provide a uniform character and complimentary material relationship between buildings, promote the perception of strength and permanence of each building, while maintaining appropriate variety for design flexibility. Building materials shall be durable, sustainable and of high quality, with sufficient variation to create visual interest and diversity, and to reduce the scale of large building masses.
(2)
Relationship to context.
a.
New building designs shall consider the design and activities of any adjacent planned building designs in relation to building access, parking areas, service areas, building setbacks, building heights, materials, and colors. Shared service areas shall be utilized whenever possible.
b.
No two buildings shall be exactly alike. Variations in building massing, roof planes, fenestration patterns, material usage, and color are required.
(3)
General building materials.
a.
The unique usage and treatment of exterior building materials is permitted. However, a building's material palette shall include materials similar or compatible to other buildings located within the district.
b.
The primary materials that are preferred for use on façades are:
1.
Stone veneer (including manufactured stone).
2.
Brick veneer.
3.
Fiber-cement siding/trim.
4.
Wood siding/trim.
5.
Wood or metal windows/storefront systems.
6.
Fiberglass roof shingles.
7.
Metal roof systems.
8.
Tile or slate roof systems.
9.
Other materials specifically approved on a case-by-case basis by the architectural control board that are not prohibited or are allowed in limited quantities or circumstances.
c.
The primary accent materials that are discouraged are:
1.
Vinyl siding.
2.
Vinyl windows.
3.
PVC siding/trim material.
4.
Smooth, unfinished or untextured concrete masonry units or concrete walls.
5.
Simulated wood siding.
6.
Plastic siding.
7.
Reflective glass.
8.
Metal siding.
9.
Concrete masonry units with or without texture.
10.
Other materials not allowed by the village architectural control board.
d.
Materials allowed within limited qualities or circumstances:
1.
Exterior insulating and finishing systems (EIFS). Stucco and EIFS shall be used only for walls, architectural features, and embellishments not subject to pedestrian contact.
2.
Pre-cast concrete for use of architectural elements such as windowsills, lentils, arches, cornices and similar.
3.
Concrete masonry units with standard clay brick dimensions, when used at rear elevations, service areas, and not pedestrian areas.
4.
Metal panel systems.
5.
Other materials specifically approved on a case-by-case basis by the architectural control board.
Figure 122-826.14 Example of Appropriate Material Combination
(4)
Corner returns. Where a wall turns a corner, the surface materials shall continue around the corner a minimum of eight feet.
Figure 122-826.15 Example of Appropriate Material Corner Return
(5)
Compatibility of adjoining buildings. Façades of buildings visible from adjoining properties should feature design characteristics similar to the adjoining building. This shall only apply for new construction within the district.
Figure 122-826.16 Example of Compatible Adjoining Buildings
Figure 122-826.17 Example of Compatible Adjoining Buildings
Figure 122-826.18 Example of Non-Compatible Adjoining buildings
(6)
Roof materials.
a.
Flat roofs. These types of roofs shall use EPDM (elastomeric membrane), TPO (thermoplastic polyolefin), PVC membrane or similar with parapet walls. Metal copings are permitted on parapets.
b.
Gabled, sloped and mansard roofs. These types of roofs shall use slate, wood, dimensional asphalt, copper shingles or standing seam, and standing seam metal roofs.
c.
Green roofs. These types of roofs are partially or completely covered with plant material and are used for roof top gardens or for stormwater management.
(7)
Color.
a.
Masonry material components. Masonry materials shall be representative of the native and regional materials which include limestone; Lannon stone in buff colors; and clay materials in cream, brown, and red tones.
b.
Wood and other material components. Wood and other building colors shall be representative of the region. Warm colors should be emphasized.
c.
Trim and accent components. Garish, highly reflective, fluorescent, and metallic colors shall not be used.
(8)
Roof colors.
a.
Membrane roofs.
1.
The color of the aggregate or the rubber membrane shall be black or a natural earth tone.
2.
Coping details. The coping color shall coordinate with the façade of the building and shall be a color that blends away. The coping shall not be highlighted by a color to signify it as a separate architectural element.
b.
Sloped roofs.
1.
Roof colors shall be a shade of gray, brown or red, natural copper allowed to patina.
(9)
Compatibility between storefronts within the same building. Colors of individual storefronts within a larger building shall be complementary and within the same tonal value of the rest of the building.
(10)
Natural finishes. Unpainted metal or metal subject to ordinary rusting shall not be used as a building material. Factory-finished metal elements as well as metals that develop an attractive oxidized finish, such as copper, galvanized metal or weathering steel, may be used as architectural accents subject to specific approval by the architectural control board.
(11)
HVAC, utility meters, and mechanical screening. Meters, transformers and other devices associated with a building are encouraged to be located within the building when possible. When they must be located on the exterior of the building the following shall apply:
a.
Roof mounted.
1.
All roof-mounted mechanical elements must be screened from view from the public right-of-way and neighboring properties.
2.
Screening must be architecturally compatible with the building design. Appropriate screening may include wall screening, parapet design.
3.
Rooftop units that will be located on the roofs of buildings that will be shorter than surrounding buildings must either be screened or arranged in a manner to allow for an aesthetically pleasing view from above as approved by the architectural control board.
b.
Ground mounted. Ground-mounted elements shall be designed to coordinate with the landscaping and other design elements of the development to minimize the appearance of such units. Appropriate screening includes, but is not limited to, landscaping, masonry walls, and faux elements such as rocks.
c.
Wall mounted. Mechanical and electrical equipment, transformers, meters, shall be located at the rear of buildings and painted to blend with the building color.
1.
When it is not physically possible to locate electrical equipment, meters and similar devices on the rear of a building, the architectural control board may grant approval of an alternative location, provided that every effort is made to minimize the visual appearance of such devices from all pedestrian areas, rights-of-way, and adjoining properties.
(12)
Dumpster screening requirements.
a.
Commercial. It is preferred that, whenever possible, all waste containers shall be located within the buildings. However, when waste containers must be located on the exterior of the building, the dumpsters shall be screened according to section 71-91 of this Code. Whenever possible, dumpster enclosures shall contain multiple dumpsters and shared enclosures are strongly encouraged.
b.
Residential. All waste containers shall be located within buildings or shall be screened per section 71-91 for multi-unit structures. Single-family units shall screen the exterior waste containers with fencing or landscaping so as not to have the containers visible from any public or private street, or adjoining property.
(13)
Loading and service areas. Loading, service and storage areas shall be screened from all public roadways and pedestrian areas. The required screening must be composed of the same exterior materials as the buildings on the lot, or through the use of masonry walls, ornamental fence 80 percent opaque, evergreen landscape material, or combination thereof.
(14)
Accessory structure. All accessory structures shall be designed with the same architectural style and building materials as the principal structure.
(15)
Garden walls and fences. All fences shall be designed with the same architectural style of the building. Appropriate fence materials include wood, metal and masonry. Plastic or PVC fencing shall not be permitted. The maximum height of fences shall not be greater than four and one-half feet, unless required to be taller in the state statutes. All fences shall have the "bad" side of the fence facing toward the inside of the lot when not visible from a right-of-way. Fences with two "good" sides are preferred. All fences adjacent to rights-of-way shall be open fences. Garden walls shall be constructed of masonry to match the building masonry.
(16)
Modifications and deviations. The architectural control board may modify or deviate the standards of this section if the applicant can show an improved architectural design that does not degrade the quality of the public areas or directly contrast with the vision for this district.
(a)
Intent.
(1)
Signage will play an important role in creating an interesting village experience within the PDO-2.
(2)
Signs must be of high-quality design.
(3)
Signage shall not interfere with residential uses.
(b)
Signage review. Shall comply with section 78-2 of this Code.
(c)
Permits and procedures. Shall comply with section 78-3 of this Code.
(d)
Temporary signs. Shall comply with subsection 78-6(7) of this Code.
(e)
Penalties. Shall comply with section 78-4 of this Code.
(f)
Construction standards. Shall comply with section 78-5 of this Code.
(g)
Appeals and exceptions. Shall comply with section 78-11 of this Code.
(h)
Installation. All electrical transformer boxes, conduits and raceways shall be concealed from public view.
(i)
Encroachments. No signs may encroach into the public right-of-way lower than ten feet from grade, and may not be any closer than three feet from the back of curb of any public or private street. All signage must be located three feet from all street furnishings, such as streetlights, street signs and similar.
(j)
Directional signage. Directional signage shall comply with subsection 78-6(10) of this Code.
(k)
Master sign programs. Master sign programs are required for all developments with more than one tenant.
(1)
Master sign programs shall be designed to complement the style, color and materials of the building. Signage programs shall be designed to integrate with the building façade.
(2)
Sign programs which provide attractive combinations of type and styles encouraged. Within the master sign program, the program shall be designed to have some common features amongst all signage, such as shape, colors, or type.
(3)
The minimum distance between adjoining signs should be 36 inches or as defined by an approved master sign program.
(4)
Repetitious signage information on the same building frontage shall be avoided.
(5)
New and remodeled building designs shall provide logical sign areas, allowing flexibility for new users as the building is re-tenanted over time.
(6)
All master sign programs must be approved by the architectural control board.
(l)
Maximum signage allowances.
(1)
Commercial developments within commercial or mixed use areas of PDO-2 are allowed a total of two sign types. The types that are allowed are:
a.
Awning sign.
b.
Canopy sign.
c.
Wall sign.
d.
Arcade sign.
e.
Vertical projection sign.
f.
Banner signage.
g.
Additional sign types may be permitted with the approval of the architectural control board.
h.
Additionally, all commercial establishments are allowed one of each of the following types of signs:
1.
Small blade sign per street façade.
2.
Window sign per window.
3.
Rear of building sign per rear entry.
(2)
Residential developments within mixed use, multi-family residential, or single-family residential areas of PDO-2 are allowed signage as follows:
a.
House number shall be affixed to all structures per chapter 90, article IV of this Code.
b.
Residential units and or developments are allowed signage as defined in section 78-7 of this Code.
c.
Developments with five or more residential units are allowed one of the following sign types: entrance signs, awning signs, canopy signs, wall signs, or small blade signs.
d.
Signs shall be formal and restrained in design. Brass or bronze plaques are appropriate. Animated and neon signs are not allowed in residential developments.
e.
Temporary marketing and construction signs may be installed for a period of six months, renewable at the discretion of the village departments. Such signs shall be limited to one sign per building or development, and may be freestanding in the front yard, attached to construction scaffolding, or located inside a window. They shall be no larger than six square feet, and if freestanding, no higher than 54 inches. Materials should be wood or metal and painted no more than three colors. Signs are not to be illuminated.
(3)
Highway-oriented signs for commercial land use areas.
a.
Commercial developments consisting of two or more commercial establishments where the property is located within 200 feet of Interstate 41 may have one of the following sign types:
1.
Accessory structure wall sign.
2.
Large vertical projecting sign.
3.
Large wall sign.
4.
Monument sign.
(m)
Allowable sign types.
(1)
Accessory structure wall sign. An accessory structure wall sign is a sign mounted to an accessory structure. The accessory structure may be a gazebo, tower, pergola, archway, or other similar accessory structure.
a.
Size. May not exceed 100 square feet. In no circumstance may the sign exceed 75 percent of the wall area on which it is erected.
b.
Location.
1.
Shall be mounted on the accessory structure.
2.
Shall not extend more than 12 inches from the face of the structure.
c.
Illumination. Shall comply with subsection 78-6(1)(d) of this Code.
Figure 122-827.1 Example of an Accessory Structure Wall Sign
Figure 122-827.2 Example of an Accessory Structure Wall Sign
Figure 122-827.3 Example of an Accessory Structure Wall Sign
(2)
Arcade signs. An arcade sign is a panel erected parallel to a building façade and within the opening of an arcade. Arcade signs must be supported for their entire length by metal brackets, grillage or supports.
a.
Size. The length of an arcade sign cannot exceed 75 percent of the arcade entrance on which it is erected.
b.
Illumination. Shall comply with subsection 78-6(1)(d) of this Code.
Figure 122-827.4 Example of an Arcade Sign
Figure 122-827.5 Example of an Arcade Sign
(3)
Awning signs. An awning sign is a sign that is applied to, attached to or painted on an awning intended for protection from the weather or as a decorative embellishment.
a.
Size.
1.
Front and side panels. Any awning may have one sign located on the front or a side vertical panel.
2.
Primary entrance—Sloped portion. Awnings located over the primary entrance of a building may have one store logo or the store name applied.
b.
Copy area.
1.
Side panels. Seventy-five percent of the area of the vertical surface of the side panel may contain signage.
2.
Slope panel. Forty percent of the area of the awning slope may contain signage.
Figure 122-827.6 Example of Awning Signage Copy Area
Figure 122-827.7 Example of Awning Signage
Figure 122-827.8 Example of Awning Signage
(4)
Banner signage.
a.
Size. Maximum 40 square feet.
b.
Height. The maximum height shall be 12 feet.
c.
Design. Support brackets shall be architecturally significant and shall have an architectural character that corresponds with the building architecture.
d.
Location of signage. Mounted above 16 feet on the second story of a structure.
e.
Illumination. Shall comply with subsection 78-6(1)(d) of this Code.
Figure 122-827.9 Example of Banner Signage
Figure 122-827.10 Example of Banner Signage
(5)
Canopy signs. A canopy sign shall be proportional to the canopy which it is affixed.
a.
Size. The sign may not be greater in size than ten percent of the size of the front face of the canopy of which it is a part of, attached to, or a maximum of 30 square feet, whichever is greater.
b.
Height. Sign shall not exceed two feet in height.
Figure 122-827.11 Example of a Canopy Sign
Figure 122-827.12 Example of a Canopy Sign
(6)
Monument sign. Shall be setback a minimum of five from all property lines, located outside of the vision corner established in section 122-601, and meet the area, height, and landscape requirements of section 78-6(3)(a)(3).
Figure 122-827.13 Example of a Monument Sign
Figure 122-827.14 Example of a Monument Sign
(7)
Rear of building tenant identification signs. Rear of building tenant identification signs are signs used to identify rear entries of tenant spaces.
a.
Size. Rear of building signs cannot exceed 15 square feet in area when sign identifies a rear public entrance to the building or tenant space. When the rear of building sign identifies a tenant's service door, this sign shall not be larger than eight square feet.
b.
Number. One rear of building sign per tenant is allowed on the rear face of the building or tenant space if there is a public entrance to the building or tenant space from the rear of the building. In addition, one sign is allowed per each tenant service door.
c.
Types and materials. Rear of building signs may be wall signs or window signs and may be made of the same materials that are permitted for these signs.
d.
Location. The rear of building signs shall only identify tenants in the building or tenant space to which the sign is attached. Tenant service doors shall be identified with a sign applied to the door or on the wall within two feet of the service door.
(8)
Small blade signs. A blade sign is a tenant identification sign on a pedestrian level which uses letterforms, logo, and/or graphic elements and projects at a right angle from the face of a building.
a.
Size. The size of a small blade sign cannot exceed 12 square feet in area. The support structure is not included when calculating area.
b.
Height and location. Top of sign shall be aligned with window transom and bottom of sign shall maintain a clearance of ten feet above ground.
c.
Design.
1.
Support structures for small blade signs must be decorative and made of metal. Supports must be engineered to support local wind loads.
2.
The sign panel, lettering and graphics can be made of wood, synthetic wood or metal.
3.
Small blade signs may project over the sidewalk but must be set back at least three feet from the back of curb and have at least ten feet of clearance from grade.
4.
Small blade signs must be double sided and the depth of the sign cannot exceed eight inches. Only one face of the sign will be used to calculate size.
d.
Illumination. Shall comply with subsection 78-6(1)(d) of this Code.
Figure 122-827.15 Example of Small Blade Sign
Figure 122-827.16 Example of Small Projecting Sign
(9)
Vertical projecting signs. A vertical projecting sign is a sign that is attached to and projecting out from a building face or wall more than 12 inches, generally set at a right angle to the building.
a.
Size. The size of a vertical projecting sign cannot exceed 100 square feet in area. Only one face of the sign will be used to calculate size.
b.
Proportion. The proportion of the sign shall be one foot wide for every two and one-half feet tall.
c.
Location.
1.
A vertical projecting sign may overhang the sidewalk but must be located a minimum of three feet from the back of curb. At least ten feet of clearance must be provided between the bottom of the sign and the sidewalk.
2.
Vertical projecting signs can extend above a tenant's lease space with approval of the owner of the building.
d.
Design.
1.
The support structure from which the projecting sign panel is suspended must be decorative and made of metal. The supports must be engineered to withstand local wind loads.
2.
The sign panel, lettering and graphics must be made of wood, synthetic wood or metal.
3.
Vertical projecting signs must be double-sided. The depth of the sign panel may not exceed 15 inches, including the depth of the applied letters or graphics.
4.
The maximum width of the sign shall not exceed six feet.
e.
Illumination. Shall comply with subsection 78-6(1)(d) of this Code.
Figure 122-827.17 Example of a Vertical Projecting Sign
Figure 122-827.18 Example of Vertical Projecting Sign
(10)
Wall signs. A wall sign is a sign affixed to a wall.
a.
Size. The length of a wall sign cannot exceed 75 percent of the storefront or overall leased wall length of the wall on which it is erected.
b.
Location.
1.
Wall signs may not extend more than 12 inches from the face of the building and may not extend above the first floor without a minor adjustment.
2.
Wall signs must be contained horizontally and vertically within a tenant's lease space or storefront.
c.
Illumination. Shall comply with subsection 78-6(1)(d) of this Code.
Figure 122-827.19 Example of a Wall Sign
Figure 122-827.20 Example of Wall Sign
(11)
Window signs. All window signs shall comply with subsection 78-6(3)(a)(4) of this Code.
Figure 122-827.21 Example of Window Sign
Figure 122-827.22 Example of Window Sign
(n)
Allowable sign types. For public rights-of-way and pedestrian areas of developments.
(1)
Directory sign. Project directory signs contain a map and a listing of key destinations within the PDO-2, and surrounding attractions (Village Centre, Old Falls Village, Civic Center, and similar).
a.
Size. The maximum size for a project directory sign is 16 square feet.
b.
Height. Maximum height for a project directory sign shall be seven feet measured from the ground plane.
c.
Location.
1.
Project directory signs may be placed within pedestrian areas provided a four-foot clear area is provided for pedestrians on all sides.
2.
Project directory signs may be place within the public right-of-way subject to having a minimum of four feet clearance area being provided and approval by the village manager or designee.
d.
Advertising. No retail advertising is allowed on project directory signs.
e.
Illumination. The project directory sign may be internally illuminated.
Figure 122-827.23 Example of a Directory Sign
Figure 122-827.24 Example of a Directory Sign
(a)
Intent. Support the creation of convenient and efficient shared parking in order to enable visitors to access a variety of commercial enterprises in a pedestrian-friendly environment that supports an active and vibrant retail environment.
(b)
Automobile parking.
(1)
Off-street parking requirements. Off-street facilities shall be provided for all uses within the PDO-2 and shall meet the requirements of section 122-731.
(2)
Underground parking.
a.
Setback. Off street below-grade parking is permitted to the lot lines but must be designed to allow planting of landscaping.
b.
Vehicle entries to underground parking. Access points to and from underground parking areas shall be located on side streets whenever possible. When exiting into pedestrian areas or major thoroughfares, an ample area for pausing shall be provided. Entries shall be designed to coordinate with the articulation of the building façade.
c.
Pedestrian entries to underground parking. Underground parking facilities shall provide a pedestrian connection from the parking area to street level. This connection may be internal in a building if the parking is private. Public parking shall have a direction connection to the street.
d.
Ventilation of underground parking. Ventilation shall be located in such a manner that it does not adversely affect pedestrians or adjacent uses.
(3)
Shared parking. Shared parking is encouraged within this district. An adjustment to the required number of parking stalls may be provided per the regulations of section 122-734.
(c)
Bicycle parking.
(1)
Goals. Bicycle parking is required in order to encourage the use of bicycles by providing safe and convenient places to park bicycles.
(2)
Required bicycle parking for mixed-use commercial, mixed-use residential and commercial areas.
a.
Number of spaces. Bicycle parking shall be provided based on at least one space for each 20 automobile parking spaces required as part of the base parking requirement in section 122-731 of this Code.
b.
Location.
1.
Required bicycle parking must be located within each block. Bicycle parking may be located in the public right-of-way with the approval of the village manager or designee, or on private property.
2.
On-street bicycle parking shall be located within the band created by street trees and pedestrian streetlights. However, it must be placed in a manner that avoids conflicts with pedestrian and vehicular paths.
Figure 122-828.1 On-Street Bicycle Parking
c.
Covered spaces. If covered spaces for motor vehicles are provided on site, then 50 percent of the bicycle parking shall also be covered.
d.
Rack types and required areas. Rack types shall either match those provided within the public right-of-way or will require approval by the director of community development.
(a)
Intent. It is the intent of this section to provide a standard and consistency of lighting that supports pedestrian activity and promotes safety.
(b)
Lighting standards.
(1)
Street and pedestrian lighting specifications are found in section 90-160 and 90-171 of this Code. Parking lot lighting specifications are found in section 122-640.
a.
Lighting elements shall be incandescent, metal halide, LED or halogen only. No high-intensity discharge (HID) or fluorescent lights (except fluorescent bulbs that screw into standard socket fixtures) may be used on the exterior of buildings.
b.
All lighting shall be focused downward or narrowly focused on its intended target areas.
c.
In parking areas within commercial areas, "shoe box" style lighting fixtures with cut-off luminaries shall be allowed for illumination in the parking field only. The height from grade shall not exceed 25 feet. Cut-off shields and other means shall be used to prevent light from spilling onto adjoining properties or rights-of-way. When a parking area is adjacent to residential uses the lighting located within 25 feet of the property line shall not exceed 16 feet high and shall use proper screening of the lighting to minimize the impact on the residential uses.
(c)
Security lighting.
(1)
Security lighting shall use the lowest possible illumination to effectively allow surveillance.
(2)
The use of sensor technologies, timers or other means to activate lighting during times when it will be needed may be used to conserve energy and provide safety.
(3)
In ordering to direct light downward and minimize the amount of light spill into the dark night sky, all security lighting fixtures shall be full cut-off fixtures as defined by the Illuminating Engineering Society of North America (IESNA).
(4)
Security lighting fixtures shall be shielded and aimed so that illumination is directed to the designated areas.
(d)
Landscape and architectural lighting.
(1)
Location. Landscape and architectural lighting shall be permitted in the following areas:
a.
At entries and/or gateways of the PDO-2.
b.
To highlight interesting or unique architectural elements or focal points as they relate to the overall building design.
c.
To highlight interesting or unique landscape elements or focal points as they relate to the overall landscaping.
d.
Other areas as approved by the architectural control board.
(2)
Landscape and architectural lighting requirements. Landscape and architectural lighting shall be ground-, building-, or lighting pole-mounted with the light source being concealed from direct viewing.
(a)
Intent.
(1)
Provide a pleasing and technically sound landscaped environment.
(2)
Provide for cooling and heat gain during various seasonal changes for pedestrian areas and structures.
(3)
Provide for stormwater management and water quality.
(b)
Plan requirements. Plans shall comply with the requirements of section 122-623.
(c)
Maintenance requirements.
(1)
Shall comply with the requirements of section 122-603.
(2)
The owner(s), ownership group and/or community association shall be responsible for replacement of dead or unacceptable plant material.
(d)
Preservation of topography. Shall comply with section 38-113 of this Code.
(e)
Avoidance of plant monocultures.
(1)
Plant monocultures are essentially environments that have only two or three varieties of main plant materials. Landscaping plans (for a phase, individual property, individual building, etc.) shall not contain more than 25 percent of any one type of species of shrub, evergreen tree, deciduous tree, annual, or perennial.
(f)
Minimum planting size general.
(1)
Minimum sizes.
a.
Shade trees: two-and-one-half-inch minimum caliper.
b.
Evergreen trees: six feet height.
c.
Evergreen and deciduous shrubs: one-gallon pot.
d.
Perennials: four-inch potted material minimum.
e.
Groundcover: three-inch pots or bands.
(g)
Parking lot screening.
(1)
General. Screening shall be provided around the entire perimeter of all parking lots. Screening adjacent to residential uses shall be of a screening style to block headlights and other less desirable uses of parking areas. The incorporation of vegetated stormwater control measures into screening areas is strongly encouraged.
(2)
Screening types. Screening of parking lots may take one of three screening approaches:
a.
Plant screening.
1.
Deciduous trees. One per 35 linear feet.
2.
Evergreen trees. Groupings of three every 100 feet. This requirement may be waived by the village manager or designee if the landscape architect can show a design intent that does not require such plantings but provide appropriate screening.
3.
Shrubs. One per three linear feet. This requirement may be waived by the village manager or designee if the landscape architect can show a design intent that does not require such plantings but provide appropriate screening.
4.
Other plantings. (Perennial flowers) one per one linear foot.
5.
Year-round visual screen for parking areas. Plants shall be layered to affect a visual baffle as they grow together. For example, shade trees and evergreen trees are fronted with lower shrubs and flowering shrubs to create screening from the ground up. Decorative fencing or walls may be used to supplement landscaping as part of vegetated stormwater control areas.
b.
Berm and plant screening.
1.
Berm height and design. The height of the berm shall be between two and one-half and four feet and must have a minimum of a 1:3 slope. Retaining walls on the parking lot side may be used where space is a premium.
2.
Deciduous trees. One per 35 linear feet.
Figure 122-830.1 Example of Plant Screening
Figure 122-830.2 Example of Berm Screening
c.
Landscape wall with supplemental landscaping.
1.
Wall height and design. Landscape walls intended for parking lot screening may be located adjacent to rights-of-way, private streets, and adjoining properties where appropriate.
2.
Deciduous trees. One per 40 linear feet.
3.
Shrubs. Shall be supplement to soften the wall where appropriate.
4.
Other plantings. (Perennial flowers) One per one linear foot, or as specified for vegetated stormwater control measures.
Figure 122-830.3 Example of Landscape Wall Screening
(h)
Internal parking lot landscaping.
(1)
Planting islands.
a.
Quantity.
1.
Surface parking lots containing ten to 50 parking spaces shall provide a minimum of one canopy tree for every ten parking spaces.
2.
Surface parking lots containing more than 50 parking spaces shall provide a minimum of one canopy tree for every 15 parking spaces.
b.
Design. Planting areas for trees within parking rows shall be a minimum of nine feet by 18 feet, protected with curbing, wheel stops or other barrier to prevent cars from damaging the landscaped area.
c.
Plantings.
1.
Planting islands shall be underlain by soil (not base course material) and appropriate media for healthy plant growth and stormwater management, and shall be protected by curbing, wheel stops, bollards, or other protective treatment.
2.
Each island shall contain at least one canopy tree and a combination of groundcover, shrubs and other plantings. Planting islands shall also be designed so as not to interfere with the opening of car doors in adjacent spaces.
3.
Each swale shall contain one canopy tree and vegetation that can withstand dry and wet conditions.
(i)
Plaza and open space landscaping. Landscaping shall be provided within these areas. Minimum requirements are defined by section 122-622. Additional landscaping criteria may be required by the architectural control board on a case-by-case basis.
(j)
Foundation and yard landscaping.
(1)
Multi-family and single-family residential development.
a.
Shade trees. A minimum of one shade or ornamental tree shall be provided in the front yard and a minimum of one shade or ornamental tree shall be provided in the rear yard.
b.
Foundation plantings. Foundation plantings shall be provided at the fronts of all structures and shall return to the sides of the structures a minimum of six feet. Planter boxes may be included with foundation plantings.
c.
Yards. All yards shall have a turf or native planting area, or other formalized garden areas.
d.
Variations. When the architecture of the structures on the site call for a unique landscaping design solution, the architectural control board may approve a different design solution, which is designed by a registered landscape architect.
(2)
Commercial development and developments with commercial uses.
a.
Shade trees. Ornamental and large shade trees shall be required for all green space areas as required by the architectural control board.
b.
Foundation plantings. Foundation plantings shall be required for all greenspace areas as required by the architectural control board. Planter boxes may be included with foundation plantings.
c.
Variations. When the architecture of the structures on the site call for a unique landscaping design solution the architectural control board may approve a different design solution which is designed by a registered landscape architect.
(k)
Irrigation.
(1)
The areas in and around commercial, retail, service and residential developments shall have fully-automatic irrigation systems installed for turf and planting areas when required by the architectural control board.
(2)
Irrigation systems that are for planting beds, turf, and planters shall be maintained in good repair.
(l)
Finish materials.
(1)
Edging. Appropriate edging materials for planting beds shall include a turf edge, poly edging, steel edging and vertical stone curbing.
(2)
Mulch. Hardwood mulch or groundcovers shall be used for all planting beds. Rock, stone, and similar shall not be allowed.
(m)
Installation. Landscaping shall be installed within nine months of occupancy or substantial completion of the building, whichever comes first, weather and appropriate planting seasons permitting.
(a)
Intent. It is the intent that a developer or builder who wishes to develop under this zoning district will be processed in an expedited manner.
(b)
Conceptual review. An applicant may apply for a conceptual review for a project to the village. There are no specifics that are required to be submitted to the village, however, any information that is submitted will be commented on by the village departments. After a project has been reviewed by all village departments, the department of community development shall place the item on the appropriate agenda for discussion. A conceptual review may occur before the community development authority, plan commission, architectural control board, and/or village board.
(c)
Specific plan approval process.
(1)
Application process. Prior to obtaining a building permit, a specific plan must be approved by the Village of Menomonee Falls community development authority and the architectural control board.
(2)
Approval steps.
a.
Step one. Submission of an application containing the following:
1.
A location map of the subject property and its vicinity.
2.
Plan of operation(s).
3.
Development statistics.
4.
Site plan.
5.
Utility plan—Existing and proposed.
6.
Legal description of properties.
7.
Survey.
8.
Grading plan—One-foot contours.
9.
Stormwater management plan.
10.
Erosion control plan.
11.
Building plans.
12.
Building material samples.
13.
Building function and purpose.
14.
Parking plan.
15.
Landscaping plan.
16.
Lighting plan.
17.
Signage program.
18.
Utility plan—Building mounted and ground mounted.
19.
Dumpster plan.
20.
HVAC screening.
21.
Any adjustments or exceptions that are being requested.
22.
Any proposed CSM or subdivision plat that is necessary to implement the development plan.
23.
Value of development.
24.
Application for review (village form) and fee.
25.
Any other information that may be requested by the village.
b.
Step two. Review by village departments.
c.
Step three. Review by the community development authority. The community development authority shall review the application in accordance with intent of the project plans for tax incremental districts no. 6 and no. 8, and approve the plan as submitted, deny the plan, or approve the plan with modifications.
d.
Step four. Review by the architectural control board. The architectural control board shall review the application in accordance with the design elements of the zoning district, and approve the plan as submitted, deny the plan, or approve the plan with modifications.
e.
Step five. Building permit. After the applicant has received approval by the community development authority and architectural control board, the applicant may apply for all applicable building permits or other required permits.
(d)
Minor modification. A minor modification may be authorized allowing the variation of up to 15 percent of any numerical requirement identified within PDO-2.
(1)
Criteria for granting a minor modification.
a.
The director of community development shall consider the following criteria when determining whether to grant a minor modification:
1.
The granting of the adjustment will not be detrimental to the public welfare or injurious to other property or improvements in the neighborhood in which the property is located.
2.
The proposed adjustment will not impair an adequate supply of light and air to adjacent property, or substantially increase the congestion in the public streets, or increase the danger of fire, or endanger the public safety, or substantially diminish or impair property values within the neighborhood.
3.
The granting of the adjustment will not be contrary to the intent of PDO-2.
(2)
Submittal requirements. In addition to the regular submittal requirements, the applicant shall submit written reasons why the requested minor modification should be granted.
(3)
Approval process.
a.
Step one. Submission of an application.
b.
Step two. Review by village departments.
c.
Step three. Review by the director of community development, who shall act to approve or deny the requested minor adjustment. The director of community development may impose conditions and restrictions upon the premises benefited by a minor adjustment to reduce or minimize the injurious effect of such minor modification upon other property in the neighborhood, and to better carry out the general intent of PDO-2.
d.
Step four. Building permit. After the applicant obtains a minor adjustment and submits plans that are compliant with all conditions of the minor adjustment and obtains specific plan approval, the applicant may apply for all applicable building permits.
(e)
Adjustment. An adjustment may be authorized allowing the variation of between 15 percent and 30 percent of a numerical requirement identified within PDO-2, or to allow the adjustment of one type of use to a similar use such as "loft residential" to "townhouse" or "restaurant" to "commercial".
(1)
Criteria for granting an adjustment.
a.
The plan commission shall consider the recommendations of the community development authority and architectural control board, as well as the following criteria when determining whether to grant an adjustment:
1.
The granting of the adjustment will not be detrimental to the public welfare or injurious to other property or improvements in the neighborhood in which the property is located.
2.
The proposed adjustment will not impair an adequate supply of light and air to adjacent property, or substantially increase the congestion in the public streets, or increase the danger of fire, or endanger the public safety, or substantially diminish or impair property values within the neighborhood.
3.
The granting of the adjustment will not be contrary to the intent of PDO-2.
b.
The plan commission may impose conditions and restrictions upon the premises benefited by an adjustment to reduce or minimize the injurious effect of such adjustment upon other property in the neighborhood, and to better carry out the general intent of PDO-2.
(2)
Submittal requirements. In addition to the regular submittal requirements, the applicant shall submit written reasons why the requested adjustment should be granted.
(3)
Approval process.
a.
Step one. Submission of an application.
b.
Step two. Review by village departments.
c.
Step three. Review by the community development authority. The community development authority shall review the application and provide the plan commission with a recommendation to approve, deny, or approve with conditions.
d.
Step four. Review by the architectural control board. The architectural control board shall review the application and provide the plan commission with a recommendation to approve, deny, or approve with conditions.
e.
Step five. Plan commission approval. After the community development authority and architectural control board have made recommendations to the plan commission, the commission shall review and act upon the adjustment and the development. The commission may approve, deny, or approve the adjustment with conditions.
f.
Step six. Building permit. After the applicant obtains an adjustment, submits plans that are compliant with all the conditions of the adjustment, and obtains specific plan approval, the applicant may apply for all applicable building permits.
(f)
Exception. An exception may be authorized allowing a 30 percent or greater variation of any numerical requirements within PDO-2, or to allow the required use to change.
(1)
Criteria for granting an exception.
a.
The village board shall consider the recommendations of the community development authority, architectural control board, and plan commission, as well as the following criteria when determining whether to grant an exception:
1.
The granting of the exception will not be detrimental to the public welfare or injurious to other property or improvements in the neighborhood in which the property is located.
2.
The proposed exception will not impair an adequate supply of light and air to adjacent property, or substantially increase the congestion in the public streets, or increase the danger of fire, or endanger the public safety, or substantially diminish or impair property values within the neighborhood.
b.
The village board may impose conditions and restrictions upon the premises benefited by an exception to reduce or minimize the injurious effect of such adjustment upon other property in the neighborhood, and to better carry out the general intent of PDO-2.
(2)
Submittal requirements. In addition to the regular submittal requirements, the applicant shall submit written reasons why the requested exception should be granted.
(3)
Approval process.
a.
Step one. Submission of an application.
b.
Step two. Review by village departments.
c.
Step three. Review by the community development authority. The community development authority shall review the application and provide the village board with a recommendation to approve, deny, or approve with conditions.
d.
Step four. Review by the architectural control board. The architectural control board shall review the application and provide the village board with a recommendation to approve, deny, or approve with conditions.
e.
Step five. Review by the plan commission. The plan commission shall review the application and provide a recommendation to the village board with a recommendation to approve, deny, or approve with conditions.
f.
Step six. Scheduling of public hearing. After the community development authority, plan commission and architectural control board have made recommendations to the village board, the director of community development or designee shall schedule a public hearing before the village board.
g.
Step seven. Public hearing. The village board shall hold a public hearing upon each plan commission recommendation, giving public notice thereof by publication of a class two notice pursuant to Wis. Stats. ch. 985. Notice of the public hearing shall be mailed to the petitioner and to the clerk of any municipality whose boundaries are within 1,000 feet of any lands included in the petition, and to the owners of all lands lying within 300 feet of any lands included in the petition. The failure to give any notice to the clerk of any municipality whose boundaries are within 1,000 feet of any lands included in the petition or to the owner of any property, except the owner of lands included in the petition, shall not invalidate the action taken by the village board.
h.
Step eight. Village board action. Following such hearing and after careful consideration of the recommendations from the community development authority, architectural control board and plan commission, the village board shall act to approve, deny, or approve the requested exception with conditions.
i.
Step nine. Building permit. After the applicant has obtained an exception, submits plans that have been modified to be compliant with all conditions of the exception, and obtains specific plan approval, the applicant may apply for all applicable building permits.
PLANNED DEVELOPMENT OVERLAY DISTRICTS
Successful communities leverage their land use, open space, and transportation plans in a manner which creates a clear sense of scale, transition, and activity towards a hierarchy in strong and memorable community experiences. The foundation of such a hierarchy is the creation of development districts that form a positive collective identity when viewed in total. To achieve such a positive end result, each district should have a unique character defined through its land use mix and physical design.
(a)
Boundaries. The following lands are regulated by the PDO-1 development code.
Phase 1
That part of Parcel 1 of Certified Survey Map No. 9493, as said C.S.M. is recorded in the Waukesha County Register of Deeds Office as Document No. 2900117, as recorded on December 27, 2002, in Volume 87, on pages 1—15 inclusive, and located in the Northwest ¼ of the Southwest ¼ and the Southwest ¼ of the Southwest ¼ of Section 13, Township 8 North, Range 20 East, Village of Menomonee Falls, County of Waukesha, State of Wisconsin. Described as follows:
Beginning at the north most corner of said Parcel 1; thence South 44°05'01" East, along the southwesterly right-of-way line of Appleton Avenue, 242.58 feet to a point of curvature; thence 184.01 feet along the arc of a curve, along said southwesterly right-of-way line, whose radius point bears North 44°05'55" East, 5799.58 feet, with a chord which bears South 44°59'33" East, 184.00 feet, and a central angle of 1°49'04"; thence South 00°05'02" East, 489.49 feet; thence South 31°34'17" East, 105.75 feet; thence South 03°01'22" West, 167.57 feet; thence North 90°00'00" West, 21.15 feet; thence North 00°05'02" West, 133.72; thence South 89°54'58" West, 24.80 feet; thence North 22°32'58" West, 109.77 feet; thence North 00°00'00" East, 338.17 feet; thence South 47°36'31" West, 155.01 feet; thence North 47°13'48" West, 504.46 feet; thence North 43°23'48" East, 330.32 feet to the Point of Beginning.
Said lands as described contains 183,253 square feet or 4.21 acres
Phase 2
That part of Parcel 1 of Certified Survey Map No. 9493, as said C.S.M. is recorded in the Waukesha County Register of Deeds Office as Document No. 2900117, as recorded on December 27, 2002, in Volume 87, on pages 1—15 inclusive, and located in the Northwest ¼ of the Southwest ¼ and the Southwest ¼ of the Southwest ¼ of Section 13, Township 8 North, Range 20 East, Village of Menomonee Falls, County of Waukesha, State of Wisconsin. Described as follows:
Commencing at the north most corner of said Parcel 1; thence South 44°05'01" East, along the southwesterly right-of-way line of Appleton Avenue, 242.58 feet; thence 184.01 feet along the arc of a curve, along said right-of-way line, whose radius point bears North 44°05'55" East, 5799.58 feet, with a chord which bears South 44°59'33" East, 184.00 feet, and a central angle of 1°49'04"; thence South 00°05'02" East, 489.49 feet to the Point of Beginning; thence South 62°50'21" East, 164.96 feet; thence North 00°16'02" West, 314.17 feet; thence South 48°32'06" East, 159.53 feet; thence South 51°48'51" East, 307.07 feet; thence South 38°11'09" West, 85.14 feet; thence South 00°00'00" East, 77.91 feet; thence South 25°30'11" East, 52.26 feet; thence South 00°00'00" East, 8.83 feet; thence North 90°00'00" West, 37.50 feet; thence South 00°00'00" East, 230.49 feet; thence South 13°04'13" West, 24.13 feet; thence North 90°00'00" West, 34.66 feet; thence South 40°33'36" West, 28.48 feet; thence South 74°06'49" West, 51.27 feet; thence South 23°42'47" West, 36.29 feet; thence North 89°33'36" West, 73.98 feet to a point of curvature; thence 393.77 feet along an arc of curve whose radius point bears North 31°18'21" East, 420.54 feet, with a chord which bears North 31°52'10" West, 379.54 feet, and a central angle of 53°38'56"; thence North 90°00'00" East, 4.87 feet; thence North 03°01'22" East, 167.57 feet; thence North 31°34'17" West, 105.75 feet to the Point of Beginning.
Said lands as described contains 238,235 square feet or 5.47 acres
Phase 3
That part of Parcel 1 of Certified Survey Map No. 9493, as said C.S.M. is recorded in the Waukesha County Register of Deeds Office as Document No. 2900117, as recorded on December 27, 2002, in Volume 87, on pages 1—15 inclusive, and located in the Northwest ¼ of the Southwest ¼ and the Southwest ¼ of the Southwest ¼ of Section 13, Township 8 North, Range 20 East, Village of Menomonee Falls, County of Waukesha, State of Wisconsin. Described as follows:
Commencing at the southwest corner of Parcel 2 of said Certified Survey Map; thence North 01°13'51" West, along the westerly line of said Parcel 2, 500.00 feet; thence North 89°54'58"East, 501.43 feet; thence South 00°05'02" East, 454.39 feet; thence South 89°33'36" East, 391.10 feet to the Point of Beginning; thence North 13°04'13" East, 95.66 feet; thence North 00°00'00" West, 230.49 feet; thence South 90°00'00" East, 37.50 feet; thence North 00°00'00" West, 8.83 feet; thence North 90°00'00" East, 33.10 feet; thence North 38°11'09" East, 149.08 feet; thence South 51°48'51" East, 138.42 feet; thence South 50°57'45" East, 221.36 feet; thence South 39°53'05" West, 295.58 feet; thence North 89°33'36" West, 275.60 feet to the Point of Beginning.
Said lands as described contains 134,282 square feet or 3.08 acres
(b)
Applicability.
(1)
All sections of this Code apply to this district, except as otherwise noted or superseded by this PDO-1 development code.
(2)
A precise implementation plan is required for all phases or structures within PDO-1.
(3)
Modifications to an adopted precise implementation plan shall be determined by the village manager or designee as a major (different building footprint) or minor (modifications of landscaping) modification. Major modifications as defined in subsection 122-364(g)(2), require the submission and approval of a new specific implementation plan. Minor modifications defined as any change not classified as a major change, may be approved by the zoning administrator, however any minor change shall be properly filed with the zoning administrator, or it shall be automatically be deemed to be a major change.
(c)
Conditional uses.
(1)
Shall be required per article IV of this chapter.
The PDO-1 is divided into three different districts per the PDO-1 regulating plan (figure 122-802.1). Only the neighborhood edge district, mixed residential district, and commercial/retail district are regulated by this PDO-1 development code. Diagrams and descriptions of the industrial district are included in the development code for purposes of clarity and continuity of the overall planning of the area; however, the regulations found herein are not applicable to development within the I-3 zoning district.
Figure 122-802.1 PDO-1 Regulating Plan
(1)
Masterplan site statistics.
a.
The PDO-1 masterplan shall meet the following site development requirements:
1.
Total masterplan acreage: 19.0 acres.
2.
Dedicated open space: 6.50 acres/40 percent minimum.
3.
Building coverage ratio: 20 percent maximum.
4.
Floor area ratio: 60 percent maximum.
(2)
Commercial/retail district.
a.
The commercial/retail district shall meet the following site development requirements:
1.
Acreage: 3.0 acres.
2.
Maximum dwelling units: no dwelling units permitted.
3.
Maximum development density: 40,000 square feet of commercial/retail uses.
Figure 122-802.2 Commercial/Retail District Plan
(3)
Mixed residential district.
a.
The mixed residential district shall meet the following site development requirements:
1.
Maximum non-residential land use: 12,000 square feet of commercial/retail uses.
2.
Maximum residential density: 30.0 dwelling units per acre.
Figure 122-802.3 Mixed Residential District Plan
(4)
Neighborhood edge district.
a.
The neighborhood edge district shall meet the following site development requirements:
1.
Acreage: 3.0 acres.
2.
Maximum dwelling units: 20 units.
3.
Maximum residential density: 6.7 dwelling units per acre.
Figure 122-802.4 Neighborhood Edge District
The PDO-1 shall incorporate three dedicated open space areas as illustrated by the PDO-1 open space plan (figure 122-803.1).
Figure 122-803.1 PDO-1 Open Space Plan
(1)
Lilly Creek Nature Reserve.
a.
Size and location.
1.
The Lilly Creek Nature Reserve, at approximately 5.02 acres, is the largest dedicated open space of the PDO-1. Its boundaries shall be as follows:
That part of Parcel 1 of Certified Survey Map No. 9493, as said C.S.M. is recorded in the Waukesha County Register of Deeds Office as Document No. 2900117, as recorded on December 27, 2002, in Volume 87, on pages 1—15 inclusive, and located in the Northwest 1/4 of the Southwest ¼ and the Southwest ¼ of the Southwest ¼ of Section 13, Township 8 North, Range 20 East, Village of Menomonee Falls, County of Waukesha, State of Wisconsin. Described as follows:
Commencing at the north most corner of said Parcel 1; thence South 43°23'48" West, 330.32 feet to the Point of Beginning thence South 47°13'48" East, 504.46 feet; thence North 47°36'31" East, 155.01 feet; thence South 00°00'0" West, 338.17 feet; thence South 22°32'58" East, 109.77 feet; thence South 89°54'58" West, 476.63 feet; thence North 01°13'51" West, 543.68 feet; thence South 89°51'13" West, 166.40 feet; thence North 43°23'48" East, 186.04 feet to the Point of Beginning. Said lands as described contains 218,648 square feet or 5.02 acres
b.
Use restrictions.
1.
The Lilly Creek Nature Reserve shall be maintained as a pristine setting with its natural amenities preserved, restored, and/or enhanced.
2.
Preservation, restoration, and/or enhancement of the wetlands within the Lilly Creek Nature Reserve are subject to village and DNR approval.
3.
The Lilly Creek Nature Reserve shall be preserved, restored, and/or enhanced to encourage low-impact pedestrian interaction and activities such as walking, jogging, biking, picnicking, wildlife watching, etc. It will also serve as a primary vista for units located in the mixed residential and neighborhood edge districts.
4.
Improvements other than natural restoration or enhancements shall be limited to the following non-wetland areas:
i.
Water detention/retention systems, basins, etc. These shall be designed to blend seamlessly into the natural setting.
ii.
Sidewalks, plazas, and trails as permitted per section 122-804.
iii.
Stand-alone community structures permitted with approval of the plan commission and architectural control board.
iv.
Site amenities such as benches, seating, and trash receptacles which will enhance the interaction with, and the conservation of, the Lilly Creek Nature Reserve. See section 122-810, site amenities, for additional requirements.
v.
Signage per section 122-812, site signage.
c.
Landscaping.
1.
See section 122-809, landscaping standards, for additional requirements.
(2)
Good Hope Road Green Space.
a.
Size and location.
1.
The Good Hope Green Space shall be a ½ to 1½ acre open space. Its boundaries shall be as follows: That part of Parcel 1 of Certified Survey Map No. 9493, Described as follows: Commencing at the southwest of Parcel 2 of said Certified Survey Map; thence North 01°13'51" West, along the westerly line of said Parcel 2, 500.00 feet; thence North 89°54'58"East, 501.43 feet; thence South 00°05'02" East, 133.72 feet to the Point of Beginning; thence South 90°00'00" East, 16.28 feet; thence 393.77 feet along an arc of 420.54 foot radius curve to the right, a chord which bears South 31°52'10" East, 379.54 feet, and a central angle of 53°38'56"; thence North 89°33'36" West, 216.21 feet; thence North 00°05'02" West, 320.67 feet to the Point of Beginning. Said lands as described contains 25,709 square feet or 0.59 acres.
Also;
Commencing at the southwest of Parcel 2 of said Certified Survey Map; thence North 01°13'51" West, along the westerly line of said Parcel 2, 500.00 feet; thence North 89°54'58"East, 501.43 feet; thence South 00°05'02" East, 454.39 feet; thence South 89°33'36" East, 290.19 feet to the Point of Beginning; thence North 23°42'47" East, 36.29 feet; thence North 74°06'49" East, 51.27 feet; thence North 40°33'36" East, 28.48 feet; thence North 90°00'00" East, 34.66 feet; thence South 13°04'13" West, 71.53 feet; thence North 89°33'36" West, 100.91 feet to the Point of Beginning. Said lands as described contains 5,178 square feet or 0.12 acres.
b.
Use restrictions.
1.
The Good Hope Road green space shall be maintained as a pristine setting with its landscaped amenities.
2.
The Good Hope Road green space shall be preserved, restored, and/or enhanced to encourage low-impact pedestrian interaction and activities such as walking, jogging, biking, wildlife watching, etc. It will also serve as a primary vista for units located in the mixed residential district.
3.
Improvements other than maintenance and improvements to landscaping shall be limited to:
i.
Water detention/retention systems, basins, etc. These shall be designed to blend seamlessly into the setting.
ii.
Sidewalks, plazas, and trails as permitted per section 122-804.
iii.
Stand-alone community structures permitted with approval of the plan commission and architectural control board.
iv.
Site amenities such as benches, seating, and trash receptacles which will enhance the interaction with, and the conservation of, the green space. See section 122-810, site amenities, for additional requirements.
v.
Signage per section 122-812, site signage.
c.
Landscaping.
1.
See section 122-809, landscaping standards, for additional requirements.
(3)
Market Plaza.
a.
Size and location. Market Plaza shall be located at the northwest corner of the commercial/retail district and the northeast corner of the mixed residential district, and contain 17,120 square feet or 0.39 acres.
b.
Design characteristics.
1.
Market Plaza shall have a combination of landscaped and hardscaped surfaces.
2.
Market Plaza shall serve as a visual terminus at the vehicular access points off of Appleton Avenue and Good Hope Road.
3.
Market Plaza shall be designed to encourage and accommodate public gathering areas as well as pedestrian interaction and activity.
4.
Improvements other than maintenance and improvements to landscaping shall be limited to:
i.
Sidewalks/plazas permitted per section 122-804.
ii.
Stand-alone community structures permitted with approval of the plan commission and architectural control board.
iii.
Site amenities such as benches, seating, trash receptacles, lighting, bike racks, etc., which will encourage and enhance pedestrian activity. See section 122-810, site amenities, for additional requirements.
iv.
Signage per section 122-812, site signage.
c.
Landscaping.
1.
See section 122-809, landscaping standards, for additional requirements.
(a)
Private street development regulations.
(1)
Location and classification.
a.
All roads for vehicular circulation shall be located and classified in accordance with the PDO-1 street development plan (figure 122-804.1).
Figure 122-804.1 PDO-1 Street Development Plan
(2)
Ownership.
a.
All roads within the PDO-1 shall be private roads.
(3)
Design and construction standards.
a.
All roads for vehicular circulation shall comply with section 94, article III, division 2 of this Code unless otherwise regulated by this PDO-1 development code.
b.
All road surfaces shall be of any of the following (or combination of the following) materials, and must be designed and constructed to meet or exceed minimum industry design/construction codes and standards.
1.
Concrete.
2.
Asphalt.
3.
Unit pavers.
(4)
Right-of-way cross-section. (See figure 122-804.1).
a.
Market streets (see figure 122-804.2).
1.
Road width. Thirty feet (inside curb-to-inside curb).
i.
Market streets shall accommodate two-way traffic.
ii.
No parking is allowed on market streets.
2.
Sidewalk apron. Four-foot width (minimum).
i.
Aprons are required at all sidewalks.
ii.
Aprons may have landscaped and/or hardscaped surfaces.
iii.
See section 122-809 for additional information on trees and other landscaping requirements.
iv.
See section 122-811 for additional information on lighting requirements.
3.
Sidewalk. Five-foot width (minimum).
i.
Sidewalks are required at the building side of market streets.
ii.
See subsection (b) below, for additional information on sidewalks and plazas.
b.
Residential streets (see figure 122-804.3).
1.
Road width. Thirty-two feet (inside curb-to-inside curb).
i.
Residential streets shall accommodate two-way traffic.
ii.
Residential streets shall allow for parking on one side of road (eight-foot parking lane). Parking spaces shall be clearly marked.
2.
Sidewalk apron. Five-foot width (minimum).
i.
Aprons are required.
ii.
Aprons shall consist of landscaped surfaces only.
iii.
See section 122-809 for additional information on trees and other landscaping requirements.
iv.
See section 122-811 for additional information on lighting requirements.
3.
Sidewalk. Five-foot width.
i.
Sidewalks are required on both sides of road.
ii.
See subsection (b) below, for additional information on sidewalks and plazas.
c.
Residential drives (see figures 122-804.4 and 122-804.6).
1.
Road width. South of residential street: 32 feet (inside curb-to-inside curb).
i.
North of residential street 24-foot minimum and 32-foot max (inside curb-to-inside curb).
ii.
Residential drives shall accommodate two-way traffic.
iii.
Residential streets may allow for parking on one side of road (eight-foot parking lane). If parking is provided, then the parking shall be marked appropriately either with surface striping or signage.
2.
Sidewalk apron. Five-foot width (minimum).
i.
Aprons are required.
ii.
Aprons shall consist of landscaped surfaces only.
iii.
See section 122-809 for additional information on trees and other landscaping requirements.
iv.
See section 122-811 for additional information on lighting requirements.
3.
Sidewalk. Five-foot width.
i.
South of residential street: sidewalks are required on both sides of road.
ii.
North of residential street: sidewalks are required on the West side of the drive and may be permitted on the East side of the drive.
iii.
See subsection (b) below, for additional information on sidewalks and plazas.
d.
Entry courts (see figures 122-804.5 and 122-804.7).
1.
Road width. Minimum 22 feet.
i.
Entry courts shall accommodate two-way traffic.
ii.
No parallel parking is allowed on roads classified as entry courts.
iii.
Dedicated perpendicular parking spaces and/or driveways are allowed on roads classified as entry courts.
2.
Sidewalk apron. Four-foot width (minimum).
i.
Aprons are required adjacent to town houses, and midrise buildings. Aprons are not required adjacent to duplexes and four-plex ranch style units.
ii.
Aprons shall consist of landscaped surfaces only.
iii.
See section 122-809 for additional information on trees and other landscaping requirements.
iv.
See section 122-811 for additional information on lighting requirements.
3.
Sidewalk. Five-foot width (minimum).
i.
Sidewalks are not required adjacent to townhomes or structures within the neighborhood edge district, but are encouraged. Sidewalks shall be provided adjacent to midrise buildings and duplex and four-plex ranch style units. See subsection (b) below, for additional information on sidewalks and plazas.
Figure 122-804.2 Market Street
Figure 122-804.3 Residential Street
Figure 122-804.4 Residential Drive - North
Figure 122-804.5 Entry Court - Ranch
Figure 122-804.6 Residential Drive - South
Figure 122-804.7 Entry Court - Mixed Residential
Figure 122-804.8 Road, Sidewalk, and Sidewalk Apron Requirements
(b)
Sidewalks and plazas.
(1)
Connectivity.
a.
In addition to the sidewalk locations outlined in subsection 122-804(a)(4), all internal sidewalks shall connect to all existing or planned sidewalks within the adjoining zoning districts and public rights-of-way (see figure 122-804.8).
Figure 122-804.9 PDO-1 Pedestrian Circulation Plan
(2)
The sidewalk/plaza network shall be uninterrupted with the exception of where sidewalks intersect with roads, private roads, and driveways.
(3)
Design and construction standards.
a.
All sidewalks shall have a minimum width of five feet unless otherwise regulated by this PDO-1 development code.
b.
Sidewalk and plaza surfaces shall be of any of the following (or combination of the following) materials and must be designed and constructed to meet or exceed minimum industry design/construction codes and standards.
1.
Concrete, including standard finishes, colored finishes, and textured finishes.
2.
Unit pavers.
3.
Colored concrete and unit pavers shall match or be similar to the TID #4 improvements.
(c)
Trails.
(1)
Location.
a.
In addition to the sidewalks outlined in subsection (b) above, a continuous trail system shall be located at the following location (see figure 122-804.8).
1.
From the sidewalk along Good Hope Road (West of Claas Road) up through the Lilly Creek Nature Reserve and to its northern most portions.
b.
The trail system shall run adjacent to, and take advantage of natural amenities such as ponds, trees, etc. The trial system shall not be located in any wetland areas.
c.
The trail system shall connect to the sidewalk system in no less than three separate locations.
(2)
The trail system shall be uninterrupted with the exception of where trails intersect with sidewalks.
(3)
Design and construction standards.
a.
All trails shall have a minimum width of five feet. Portions of the trail system can be reduced to a width of three feet where the site's natural features prohibit a five-foot width.
b.
Trail surfaces shall be of any of the following (or combination of the following) materials and must be designed and constructed to meet or exceed minimum industry design/construction codes and standards.
1.
Unit pavers.
2.
Compacted gravel, stone, etc.
3.
Grass-pavers or other similar composite paving system.
4.
Mowed turf.
c.
Rest areas with benches and trash receptacles are encouraged to be located at areas that take best advantage of the natural amenities of the site. See section 122-810, site amenities, for additional requirements.
Parking for the PDO-1 district shall meet the following requirements according to district and building use. The total vehicular parking requirements may include street parking, and individual parking areas may serve multiple buildings and/or multiple districts.
(1)
Commercial/retail district.
a.
Required vehicular parking ratios (minimums).
1.
Restaurants without drive-through facilities.
i.
One parking space per 150 gross square feet.
2.
Banks with or without drive-through facilities.
i.
One parking space per 300 gross square feet.
3.
All other permitted and conditional uses per subsection 122-806(a)(1).
i.
One parking space per 250 gross square feet.
b.
Landscaping islands at surface parking areas. Unless variation is required to enable the use of landscaped islands as vegetated stormwater control measures, the following standards shall apply:
1.
The end of each parking aisle shall have a landscape island with a minimum width of two feet and a minimum average width of four feet.
2.
At each parking aisle, landscape islands of a minimum width of four feet shall be provided between every 16 perpendicular parking spaces and every six parallel parking spaces (minimum).
c.
Required bicycle parking ratios (minimums).
1.
All permitted and conditional uses per section 122-806.
i.
Provide one exterior bicycle parking space per 3,000 gross square feet.
d.
Bicycle parking spaces.
1.
Bicycle parking requirements shall be accommodated with bicycle racks that meet all of the following criteria:
i.
Racks shall allow for the bicycle frame and one wheel to be locked to the rack.
ii.
Racks shall be securely anchored to the ground or building.
iii.
Racks shall be located as to not impede pedestrian or vehicular traffic—an area of two feet by six feet per space shall be provided.
iv.
Racks shall be located within 100 feet of the building it serves.
2.
Bicycle lockers or other bicycle storage/parking methods shall be permitted with approval of the village plan commission.
e.
Cross district parking.
1.
Parking for buildings within the adjacent I-3 zoning district may be provided within the commercial retail district. An easement for any required I-3 parking must be established.
2.
Parking for buildings within the adjacent mixed residential district may be provided within the commercial/retail district in accordance to the parking ratios in section 122-731.
(2)
Mixed residential district.
a.
Required vehicular parking ratios (minimums).
1.
Residential uses permitted per subsection 122-806(a)(2).
i.
A minimum of one covered space per residential unit and a total minimum of 2.25 spaces per residential unit.
2.
Non-residential permitted and conditional uses per subsection 122-806(a)(2)(a)(2).
i.
One parking space per 300 gross square feet.
b.
Landscaping islands at surface parking areas. Unless variation is required to enable the use of landscaped islands as vegetated stormwater control measures, the following standards shall apply:
1.
The end of each parking aisle shall have a landscape island with a minimum width of two feet and a minimum average width of four feet.
2.
At each parking aisle, landscape islands of a minimum width of four feet shall be provided between every 16 perpendicular parking spaces and every six parallel parking spaces (minimum).
c.
Required bicycle parking ratios (minimums).
1.
Residential uses permitted per subsection 122-806(a)(2).
i.
Provide one exterior bicycle parking space per 20 residential dwelling units.
d.
Bicycle parking spaces.
1.
Bicycle parking requirements shall be accommodated with bicycle racks that meet all of the following criteria:
i.
Racks shall allow for the bicycle frame and one wheel to be locked to the rack.
ii.
Racks shall be securely anchored to the ground or building.
iii.
Racks shall be located as to not impede on pedestrian or vehicular traffic—an area of two feet by six feet per space shall be provided.
iv.
Racks shall be located within 100 feet of the building it serves.
2.
Bicycle lockers or other bicycle storage/parking methods shall be permitted with approval of the village plan commission.
e.
Cross district parking.
1.
Parking for buildings within the mixed residential district may be provided within the adjacent commercial/retail district.
(3)
Neighborhood edge district.
a.
Required vehicular parking ratios (minimums).
1.
Residential uses permitted per subsection 122-806(a)(3).
i.
Minimum two enclosed spaces per residential unit.
b.
Landscaping islands at surface parking areas. Unless variation is required to enable the use of landscaped islands as vegetated stormwater control measures, the following standards shall apply:
1.
The end of each parking aisle shall have a landscape island. Each island shall have an average minimum width of five feet.
2.
Within each parking aisle, sufficient landscape islands of a minimum width of four feet shall be provided between every 16 perpendicular parking spaces and every six parallel parking spaces (minimum).
c.
Required bicycle parking ratios (minimums).
1.
No exterior bicycle parking is required.
d.
Bicycle parking spaces.
1.
Bicycle parking shall be accommodated with bicycle racks that meet all of the following criteria:
i.
Racks shall allow for the bicycle frame and one wheel to be locked to the rack.
ii.
Racks shall be securely anchored to the ground or building.
iii.
Racks shall be located as to not impede on pedestrian or vehicular traffic—an area of two feet by six feet per space shall be provided.
iv.
Racks shall be located within one hundred feet of the building it serves.
2.
Bicycle lockers or other bicycle storage/parking methods shall be permitted with approval of the village plan commission.
e.
Cross district parking.
1.
No cross-district parking is permitted in the neighborhood edge district.
Building use for the PDO-1 shall be regulated by district type as illustrated by the PDO-1 regulating plan (figure 122-802.1).
(1)
Commercial/retail district.
a.
Permitted uses.
1.
Retail shops.
2.
Restaurants without drive-through facilities.
3.
Personal and professional services.
4.
Banks with or without drive-through facilities.
5.
Professional offices.
b.
Conditional uses.
1.
The following uses and/or structures require a conditional use permit. Requests for conditional use permits are considered by the village board of trustees after receiving a recommendation from the plan commission. The issuance of a conditional use permit is entirely at the village board's discretion and is, therefore, subject to denial.
i.
The uses in a PDO requiring a conditional use permit in figure 122-420.1.
(2)
Mixed residential district.
a.
Permitted uses.
1.
Residential dwelling units comprised of the following building types:
i.
Single family residences.
ii.
Duplexes.
iii.
Multi-family buildings with no more than 60 dwelling units per building.
2.
In addition to the residential uses described above, the following uses are permitted at the ground floor level of buildings that front onto the Market Plaza and Community Green or roads classified as market streets:
i.
Retail shops.
ii.
Restaurants without drive-through facilities.
iii.
Personal and professional services.
iv.
Professional offices.
b.
Accessory uses.
1.
Home occupations that do not involve the coming and going of customers, clients, vendors, etc.
2.
Professional home offices where a portion of a residence of a professional is used to assist in conducting their profession and is not the principal office of the professional's business.
c.
Conditional uses.
1.
The uses in a PDO requiring a conditional use permit in figure 122-420.1.
(3)
Neighborhood edge district.
a.
Permitted uses.
1.
Residential dwelling units comprised of the following building types:
i.
Single family residences.
ii.
Duplexes.
iii.
Multi-family buildings with no more than four dwelling units per building.
b.
Accessory uses.
1.
Home occupations that do not involve the coming and going of customers, clients, vendors, etc.
2.
Professional home offices where a portion of a residence of a professional is used to assist in the conducting their profession and is not the principal office of the professional's business.
Building requirements for the PDO-1 shall be regulated by district type as illustrated by the PDO-1 regulating plan (figure 122-802.1).
(1)
Commercial/retail district.
a.
Building placement. (See figure 122-807.1). Note: all accessory structures shall comply with building placement regulations unless otherwise noted.
1.
Front setback. Twelve-foot minimum setback from roads classified as market streets.
2.
Side setback. Ten-foot minimum setback from all roads and property lines.
3.
Rear setback. Ten-foot minimum setback from all roads and property lines.
4.
Adjacent buildings.
i.
No minimum setback from commercial/retail buildings.
ii.
Fifty-foot minimum setback from residential buildings.
5.
Appleton Avenue. Eighty-five-foot minimum setback.
6.
Good Hope Road. Fifty-foot minimum setback.
7.
I-3 zoning district boundary. No minimum setback from boundary.
8.
Market Plaza. No minimum setback and ten-foot maximum setback from Market Plaza open space.
b.
Permitted encroachments.
1.
Awnings, canopies, open porches, and covered walkways may encroach a maximum of six feet into setbacks described in subsection a. above.
2.
No part of any building may extend over a property line or easement.
c.
Building height.
1.
Buildings in the commercial/retail district shall have a minimum height of 15 feet, a maximum of two stories above ground and be limited to a height of 40 feet.
2.
Building height shall be measured from the ground plane to top of parapet or eave of sloped roof.
d.
Accessory structures.
1.
Dumpster enclosures.
i.
Shall be located at the side or rear of the commercial retail building(s).
ii.
Shall have comply with the minimum setbacks for building placement indicated above and shall have a minimum setback of ten feet from the front face of the building(s) that it serves.
iii.
Shall be constructed with the same exterior material palette of the building(s) that it serves.
iv.
When appropriate, shall incorporate landscape screening to reduce its visual impact on the public realm.
2.
Landscape walls, fences, etc. Permitted within setback areas if the height is 4.5 feet or less. Greater than 4.5 feet shall require approval by the architectural control board.
3.
Other structures. Stand-alone community structures are permitted with approval of the plan commission and the architectural control board.
e.
Architectural design guidelines. See section 122-808, architectural standards.
(2)
Mixed residential district.
a.
Building placement. (See figure 122-807.1). Note: all accessory structures shall comply with building placement regulations unless otherwise noted.
1.
Front setback.
i.
Twenty-five-foot build-to line from roads classified as residential streets.
ii.
Twenty-foot build-to line from roads classified as market streets.
iii.
Twenty-five-foot minimum setback from roads classified as residential drives.
2.
Side setback.
i.
Twenty-foot minimum setback and 25-foot maximum setback from roads classified as residential streets.
ii.
Ten-foot minimum setback from all roads and property lines not described above.
3.
Rear setback.
i.
Ten-foot minimum setback from all property lines.
ii.
Townhome buildings: two-foot minimum setback from all roads.
iii.
Midrise buildings: 15-foot minimum setback from all roads.
4.
Adjacent buildings.
i.
Twenty-foot minimum setback from residential buildings.
ii.
Fifty-foot minimum setback from commercial/retail buildings.
5.
Appleton Avenue. Eighty-five-foot minimum setback.
6.
Good Hope Road. Fifty-foot minimum setback.
7.
I-3 zoning district boundary. No minimum setback from boundary.
8.
Market Plaza. Fifteen-foot minimum setback and 25-foot maximum setback from Market Plaza open space.
b.
Permitted encroachments.
1.
Landscape and retaining walls, bay windows, box windows, awnings, canopies, open porches, balconies, decks and covered walkways may encroach a maximum of six feet into setbacks described in subparagraph a. above.
2.
No part of any building may extend over a property line or easement.
c.
Building height.
1.
Buildings in the mixed residential district shall have a maximum of four and one-half stories and be limited to a height of 65 feet.
2.
Building height shall be measured from the ground plane to top of parapet or eave of sloped roof.
d.
Accessory structures.
1.
Dumpster enclosures shall comply with section 71-91 of this Code.
2.
Landscape walls, fences. Permitted within setback areas if the height is 4.5 feet or less. Greater than 4.5 feet shall require approval by the architectural control board.
3.
Other structures.
e.
Stand-alone community structures are permitted with approval of the plan commission and architectural control board.
1.
Architectural design guidelines: see section 122-808, architectural standards.
(3)
Neighborhood edge district.
a.
Building placement. (See figure 122-807.1). Note: all accessory structures shall comply with building placement regulations unless otherwise noted.
1.
Road setbacks.
i.
Eighteen-foot minimum setback from roads classified as entry courts.
ii.
Ten-foot minimum setback from roads classified as residential drives.
2.
Side setbacks. Ten-foot minimum setback from all property lines.
3.
Nature reserve setback. Five-foot minimum setback from nature reserve boundary.
b.
Adjacent buildings.
1.
Twenty-foot minimum setback from residential buildings.
2.
Appleton Avenue: 50-foot minimum setback.
3.
Good Hope Road: 50-foot minimum setback.
4.
I-3 zoning district boundary: no minimum setback from boundary.
c.
Permitted encroachments.
1.
Landscape and retaining walls, bay windows, box windows, awnings, canopies, open porches, balconies, decks and covered walkways may encroach a maximum of six feet into setbacks described in subsection 122-807(c)(1).
2.
No part of any building may extend over a property line or easement.
d.
Building height.
1.
Buildings in the neighborhood edge district shall have a maximum of two stories and be limited to a height of 40 feet.
2.
Building height shall be measured from the ground plane to the highest ridge of the roof.
e.
Accessory structures.
1.
Dumpster enclosures, garden structures, sheds and play-sets shall not be permitted.
2.
Landscape walls, fences, flagpoles, etc. are permitted with approval of a landscaping plan by the architectural control board.
f.
Community structures.
1.
Stand-alone community structures are permitted with approval of the plan commission and architectural control board.
2.
Guard houses and mailbox kiosks are permitted with approval of the architectural control board.
g.
Architectural design guidelines. See section 122-808, architectural standards.
Figure 122-807.1 Building Placement Requirements
(a)
Commercial/retail district. The commercial/retail district shall contain buildings with the most "contemporary" architectural designs in the PDO-1. Unique usage of building massing, proportions, fenestration patterns, and materials shall be permitted. However, to maintain the appearance of a cohesive community, the buildings in this district shall relate in some way (via scale, massing, materials, etc.) to the architecture in the mixed residential district and the neighborhood edge district and the larger neighborhood. See figures 122-808.1 and 122-808.2 for architectural character examples.
(1)
Relationship to context.
a.
New building designs shall consider the design and activities of any adjacent existing or planned building designs in relation to building access, parking areas, service areas, building setbacks, building heights, materials, and colors. Shared service areas shall be utilized whenever possible.
b.
No two buildings shall be exactly alike. Variations in building massing, roof planes, fenestration patterns, material usage, and color are required.
c.
Building use and public entrances shall be oriented towards market streets and engage market street sidewalks.
d.
Building(s) adjacent to the Market Plaza shall relate to the Market Plaza with building entrances, storefront windows, display or similar features, and/or public entrances. Structures or amenities that relate to outdoor uses shall be coordinated with the building architecture and the overall improvements within the PDO-1.
e.
Service areas and dumpster locations shall be located at the side, rear or inside of buildings. These areas shall be appropriately screened from the view of market streets, Appleton Avenue, and Good Hope Road.
f.
Mechanical equipment shall be located at the side, rear, roof, or inside of buildings and shall be appropriately screened from the view of market streets, Appleton Avenue, and Good Hope Road.
(2)
Building massing.
a.
Slightly varied building setbacks shall be encouraged to create an organic streetscape.
b.
Concave, convex, flat, and sloped roofs, or a combination thereof, are permitted.
c.
Varied building massing and roof heights, especially along building facades visible from market streets, Appleton Avenue and Good Hope Road, shall be encouraged. Long expanses of unbroken exterior facades and roof planes shall be avoided.
d.
The use of awnings, canopies, colonnades, covered walkways, pergolas, etc. are permitted to create a more pedestrian friendly scale and add visual interest to buildings.
(3)
Building fenestration (doors and windows).
a.
Primary facades along market streets and the Market Plaza shall maximize fenestration at the ground floor (pedestrian level).
b.
Secondary facades visible from market streets, Appleton Avenue, Good Hope Road, and the Market Plaza shall not be blank and windowless. These facades shall have fenestration patterns complementary to the building's primary facade.
c.
Service area facades shall continue fenestration patterns around the corner from the primary and secondary facades. Building facades located at service areas shall be screened from the view of market streets, Appleton Avenue, and Good Hope Road with architectural features (such as a masonry wall).
(4)
Building materials.
a.
The unique usage and treatment of exterior building materials is permitted. however, a building's material palette shall include materials similar or compatible to other buildings located in the mixed residential and the commercial/retail districts in order to maintain a continuity of community.
b.
The primary materials that are appropriate for use on facades in the commercial/retail district are:
1.
Stone veneer (including manufactured stone).
2.
Brick veneer.
3.
Pre-cast or cast-in-place concrete.
4.
Metal panel systems.
5.
Fiber-cement siding/trim.
6.
Wood siding/trim.
7.
Glass/metal curtain wall systems.
8.
Wood or metal windows/storefront systems.
9.
Fiberglass roof shingles.
10.
Metal roof systems.
11.
Tile or slate roof systems.
12.
Metal, wood, fabric, or membrane awnings/canopies/pergolas, etc.
c.
Other materials may be approved by the architectural control board on a case-by-case basis. The following materials may be permitted:
1.
Concrete masonry units;
2.
Metal siding/trim system.
d.
The primary materials that are not appropriate for use in the commercial/retail district are:
1.
Vinyl siding;
2.
Vinyl windows;
3.
PVC siding/trim material;
4.
Other materials not listed in subsection 122-808(a)(4)(b) and not approved by the village architectural control board.
Figure 122-808.1 Commercial/Retail District Architectural Imagery
Figure 122-808.2 Commercial/Retail District Architectural Imagery
(b)
Mixed residential district. The mixed residential district shall contain buildings with a "transitional" architectural style. The buildings in this "transitional" style shall use traditional massing, forms, and elements, but may explore the usage of more contemporary uses of proportions, fenestration patterns, and materials. The buildings in this district shall serve as a transition between the architecture of the buildings within the commercial/retail district and the architecture of the buildings within the neighborhood edge district. See figure 122-808.3 for character examples.
(1)
Relationship to context.
a.
New building designs shall consider the design and activities of any adjacent existing or planned building designs in relation to building access, parking areas, service areas, building setbacks, building heights, materials, and colors.
b.
Shared service areas shall be utilized whenever possible.
c.
Building use and public entrances shall be oriented towards the residential drive, residential street, market streets, or the Market Plaza.
d.
Building(s) adjacent to the Market Plaza shall relate to the Market Plaza with building entrances, storefront windows, display or similar features, and/or public entrances. Structures or amenities that relate to outdoor uses shall be coordinated with the building architecture and the overall improvements within the PDO-1.
e.
Service areas and dumpster locations shall be located at the side, rear or inside of buildings and shall comply with section 71-91 of this Code.
f.
Mechanical equipment shall be located at the side, rear, roof, or inside of buildings and shall be appropriately screened from the view of the residential drive, residential street, market streets, Appleton Avenue, and Good Hope Road.
(2)
Building massing.
a.
All buildings that are on the residential street (front or side) shall have consistent setbacks to help define the 'public realm' of the residential street.
b.
Buildings that front the residential drive shall have front setbacks that vary to maximize the integration of the Good Hope Road green space (subsection 122-803(2)) into the district.
c.
Traditional massing, forms and architectural elements shall be incorporated into the building designs.
1.
Appropriate forms and elements include gables, hips, bays, dormers, porches, balconies, canopies, etc.
d.
Concave, convex, flat roofs, sloped roofs, or a combination of flat and sloped roofs are permitted.
1.
Flat roofs shall incorporate a traditional parapet condition with a defined cornice.
e.
Varied building massing and roof heights, especially along building facades visible from the residential drive, residential street, market streets, Appleton Avenue and Good Hope Road, shall be encouraged. Long expanses of unbroken exterior facades and roof planes shall not be permitted.
f.
The use of awnings, canopies, colonnades, covered walkways, pergolas, etc. are encouraged to create a more pedestrian friendly scale and add visual interest to buildings.
(3)
Building fenestration (doors and windows).
a.
Facades along market streets and the Market Plaza shall maximize fenestration at the ground floor (pedestrian level) as appropriate for the architectural design when the ground floor uses are non-residential uses permitted per subsection 122-806(a)(1).
b.
Primary building facades are those that front the residential drive, residential street, market streets, Appleton Avenue, Good Hope Road, and the Market Plaza.
c.
Secondary facades that do not front, but are visible from, the residential drive, residential street, market streets, Appleton Avenue, Good Hope Road, and the Market Plaza shall have fenestration patterns complementary to the building's primary facade. Large expanses of blank, windowless exterior walls shall not be permitted.
d.
Building facades located at service areas or that contain garage doors shall be screened from the view of the residential drive, residential street, market streets, Appleton Avenue, Good Hope Road, and the Market Plaza through the means of architectural elements, intensive landscaping or combination thereof.
(4)
Building materials.
a.
The unique usage and treatment of exterior building materials is permitted - however, a building's material palette shall include materials similar or compatible to other buildings located in the neighborhood edge, mixed residential and the commercial/retail districts in order to maintain a continuity of community.
b.
The primary materials that are appropriate for use in the mixed residential district are:
1.
Stone veneer (including manufactured stone).
2.
Brick veneer.
3.
Pre-cast or cast-in-place concrete.
4.
Metal panel systems.
5.
Fiber-cement siding/trim.
6.
Wood siding/trim.
7.
Glass/metal curtain wall systems.
8.
Wood or metal windows/storefront systems.
9.
Fiberglass roof shingles.
10.
Metal roof systems.
11.
Tile or slate roof systems.
12.
Metal, wood, fabric, or membrane awnings/canopies/pergolas, etc.
c.
Other materials may be approved by the architectural control board on a case-by-case basis. The following materials may be permitted:
1.
Concrete masonry units.
2.
Metal siding/trim system.
d.
The primary materials that are not appropriate for use in the mixed residential district are:
1.
Vinyl siding.
2.
PVC siding/trim material.
3.
Other materials not listed in subparagraph b. above, and not approved by the village architectural control board.
Figure 122-808.3 Mixed Residential District Architectural Imagery
(c)
Neighborhood edge district. The neighborhood edge district shall contain buildings with a "traditional old world" architectural style. The buildings in this traditional style shall use traditional massing, forms, and architectural elements, and shall incorporate traditional proportions, fenestration patterns, and material usage. See figure 122-808.4 for character examples.
(1)
Relationship to context.
a.
New building designs shall consider the design and activities of any adjacent existing or planned building designs in relation to building access, parking areas, service areas, building setbacks, building heights, materials, and colors.
b.
Shared service/access areas shall be utilized whenever possible.
c.
Four-sided architecture is required for all structures within this district.
d.
No two buildings shall be alike. Variations in building massing, roof planes, fenestration patterns, material usage, or color are recommended.
e.
Service areas and facades that contain garage doors shall be oriented towards the entry courts and be screened from the view of the residential drive, Appleton Avenue, and the Lilly Creek Nature Reserve through the means of architectural elements, landscaping, or combination thereof.
f.
Mechanical equipment shall be adequately screened from the view of the residential drive, Appleton Avenue, and the Lilly Creek Nature Reserve through the means of architectural elements, landscaping, or combination thereof.
(2)
Building massing.
a.
Traditional massing forms and architectural elements shall be incorporated into the building designs.
1.
Appropriate forms and elements include gables, hips, bays, dormers, porches, balconies, canopies, etc.
b.
Flat roofs are not permitted.
c.
Gable ends shall have a minimum roof slope of 10:12, all other roof slopes shall have a minimum slope of 3:12.
d.
Varied building massing and roof heights, especially along building facades visible from the residential drive, Appleton Avenue and the Lilly Creek Nature Reserve, shall be encouraged. Long expanses of unbroken exterior facades and roof planes shall not be permitted.
e.
The use of awnings, colonnades, covered walkways, pergolas, etc. are permitted to create a more pedestrian friendly scale and add visual interest to buildings.
f.
Decks and/or balconies of wood or composite material are permitted with approval of the architectural control board.
(3)
Building fenestration (doors and windows).
a.
Primary building facades are those that face the residential drive, Appleton Avenue, and the Lilly Creek Nature Reserve.
b.
Secondary facades that do not front, but are visible from, the residential drive, Appleton Avenue, and the Lilly Creek Nature Reserve shall have fenestration patterns complementary to the building's primary facade. Large expanses of blank, windowless exterior walls shall not be permitted.
c.
All windows shall have traditional proportions with a vertical emphasis.
d.
All windows shall incorporate divided lights or simulated divided lights.
(4)
Building materials.
a.
Traditional materials, including traditional use and detailing, shall be solely used in the design of each building in the neighborhood edge district. A building's material palette shall include materials similar to other buildings located in the neighborhood edge and compatible with other buildings in the mixed residential and the commercial/retail districts in order to maintain a continuity of community.
b.
The primary materials that are appropriate for use in the neighborhood edge district are:
1.
Stone veneer (including manufactured stone).
2.
Brick veneer.
3.
Fiber-cement siding/trim.
4.
Wood siding/trim.
5.
Wood windows.
6.
Metal clad windows.
7.
Fiberglass roof shingles.
8.
Tile or slate roof systems.
9.
Metal roof systems for accent material only.
10.
Wood, fabric, or membrane awnings/canopies/pergolas, etc.
11.
Other materials approved by the architectural control board.
c.
The primary materials that are not appropriate for use in the neighborhood edge district are:
1.
Concrete masonry units (excluding foundation).
2.
Pre-cast or cast-in-place concrete (excluding foundation).
3.
Metal siding/trim systems.
4.
Metal panel systems.
5.
Glass/metal curtain wall systems.
6.
Storefront systems.
7.
Metal roof system (for primary roof areas).
8.
Vinyl siding.
9.
Vinyl windows.
10.
PVC siding/trim material.
11.
Other materials not listed in subparagraph b. above, and not approved by the architectural control board.
Figure 122-808.4 Neighborhood Edge District Architectural Image
(a)
Intent. It is essential to provide a pleasing and technically sound landscaped environment in the planned development zone.
(b)
Plan requirements. Landscape plans shall comply with the requirements of section 122-623.
(c)
Maintenance requirements. Shall comply with the requirements of this Code.
(1)
The owner(s), ownership group and/or community association shall be responsible for replacement of dead or unacceptable plant material.
(d)
Preservation of topography. Shall comply with section 38-113.
(e)
Avoidance of plant monocultures.
(1)
Plant monocultures are essentially environments that have only two or three varieties of main plant materials. This approach shall be rejected for the following reasons:
a.
It exposes the development zone to deforestation if a disease that attacks the primary plant material sweeps through the area.
b.
It provides less diversity of plantings for birds and wildlife.
c.
It has the visual effect of making the development too "formal" in appearance. Too much similarity in the plant materials can make the design unappealing.
(2)
Any landscaping plan (for a phase, individual property, individual building, etc.) that has more than 25 percent of any one type of species of shrub, evergreen tree, deciduous tree, annual, or perennial shall not be approved.
(f)
Minimum planting size general. Standards for plant size installation for those that are not indicated in subsections below. Plants specified for an approved vegetated stormwater control measure are exempt from the minimum size requirements of the subsections below.
(1)
Minimum sizes.
a.
Shade trees: three-inch caliper, four-inch preferred.
b.
Evergreen trees: six-foot height, eight-foot preferred.
c.
Evergreen and deciduous shrubs: 24-inch height or spread.
d.
Perennials: four-inch potted material minimum, groundcover: three-inch pots or bands.
(g)
Buffers.
(1)
Locations.
a.
Buffers shall be provided as indicated in figure 122-809.1.
Figure 122-809.1 Property Buffers
(2)
Transparent buffers.
a.
A transparent buffer is a landscape screening effect rather than absolute line of sight.
b.
Transparent buffering shall have the following minimum plantings.
1.
Deciduous trees. One tree per 45 linear feet.
2.
Evergreen trees. One per 50 linear feet.
3.
Shrubs. One per four linear feet.
4.
Other plantings (perennial flowers). One per one linear feet.
c.
Plant list. The following plantings are permitted for transparent buffers. Others species may be approved by the architectural control board on a case-by-case basis. Where a transparent buffer is proposed to incorporate vegetated stormwater control measures, the architectural control board may approve a combination of plantings and fencing that achieve a comparable degree of opacity to the plantings below.
1.
Deciduous trees. High branched, light canopied shade trees (such as: Thornless Honey Locust varieties, White Ash, Ginkgo, or similar).
2.
Evergreen trees (such as: Austrian and Scotch Pines, Colorado Spruce, White and Black Hills Spruce, Concolor fir, Upright Red and White cedars, or similar).
3.
Evergreen and deciduous shrubs (such as: Viburnums, Dogwoods, select Honeysuckle varieties, Lilacs, Amelanchiers and medium growth evergreen shrubs (Japanese Yews or Junipers), or similar).
4.
Perennials. Native and or hardy flower types typical in southern Wisconsin.
(3)
Non-transparent buffers.
a.
A non-transparent buffer is a landscape screening effect meant to "block" or visually impair the line of sight view of an object(s).
b.
Non-transparent buffers shall have the following minimum plantings.
1.
Deciduous trees. One per 35 linear feet.
2.
Evergreen trees. One per 40 linear feet.
3.
Shrubs. One per three linear feet.
4.
Other plantings (perennial flowers). One per one linear foot.
c.
Plant list. The following plantings are permitted for non-transparent buffers. Others species may be approved by the architectural control board on a case-by-case basis. Where a non-transparent buffer is proposed to incorporate vegetated stormwater control measures, the architectural control board may approve a combination of plantings, fencing and walls that achieve a comparable degree of opacity to the plantings below.
1.
Shade trees with heavy canopies (such as: Norway Maple varieties, Linden varieties, Oaks, Crabapples, Hawthorns, Ornamental Pears, or similar).
2.
Evergreen trees (such as: Austrian and Scotch Pines, Colorado Spruce, White and Black Hills Spruce, Concolor fir, Upright Red and White cedars, or similar).
3.
Massing and screening shrubs (such as: Viburnums, Dogwoods, select Honeysuckle varieties, Lilacs, Amelanchiers and medium growth evergreen shrubs, or similar).
(h)
Street tree requirements.
(1)
General requirements.
a.
Private streets must have consistent cover of deciduous shade trees for visual enhancement, providing shade, and contributing to the overall image of the development.
b.
Public streets or spaces require a similar consistent tree cover for visual enhancement. Public spaces would be considered those areas where pedestrians can gather to use the various amenities offered. These can be park-like zones, plazas, or other open spaces not necessarily associated with a private entity.
c.
Minimum size requirements are established as follows:
1.
Three-inch caliper or larger for shade trees at time of planting.
2.
Two to two and one-half inch caliper or greater for ornamental trees at time of planting.
d.
Evergreen trees are not permitted as a street tree.
e.
Street tree plantings shall have the following minimum plantings:
1.
Deciduous trees: one per 50 linear feet.
(2)
Market streets. (See figure 122-809.2).
a.
Design characteristics.
1.
Location. Planting schemes for market streets shall be simple in concept.
2.
Shade trees.
i.
One shade tree every 60 feet of street frontage.
ii.
Permitted species include: Thornless Honeylocust and cultivars, White Ash and cultivars, Ginko species, and Norway Maple and cultivars.
iii.
Minimum sizes (installed): two and one-half inch caliper minimum.
3.
Ornamental trees.
i.
May be utilized along roadways on the outside of sidewalks. They are prohibited in the sidewalk apron area. They shall not be located in a position that will block commercial storefronts or signage.
ii.
Permitted species include: Japanese Tree Lilac, Snowdrift Crabapples, Spring Snow Crabapple, Ornamental pear varieties, Thornless Cockspur Hawthorne, and other sterile flowering trees as approved.
Figure 122-809.2 Market Street Landscaping
(3)
Residential street/residential drive. (See figure 122-809.3).
a.
Design characteristics.
1.
Location. Trees shall be planted in the sidewalk apron area. Trees shall have a high arching branch habit. A greater variety of species shall be planted along the street.
2.
Shade trees.
i.
An average of one shade tree every 50 feet of street frontage shall be provided. Spacing shall be varied adjusted with regard to other site features (such as driveways, fire hydrants, intersections, crosswalks, etc.)
ii.
Permitted species include: Thornless Honeylocust and cultivars, White Ash and cultivars, Ginko species, Norway Maple and cultivars, Little leaf Lindens, and Green Ash cultivars or other species as approved.
3.
Ornamental trees.
i.
May be utilized along roadways when located along a sidewalk on the side opposite the sidewalk apron. They are prohibited in the sidewalk apron area. They shall not be located in a position that will create hazards for pedestrians or parking.
ii.
Permitted species include: Japanese Tree Lilac, Snowdrift Crabapples, Spring Snow Crabapple, Ornamental pear varieties, Thornless Cockspur Hawthorne, and Amelanchier species or similar.
Figure 122-809.3 Residential Street/Residential Drive Landscaping
(4)
Entry court. (See figure 122-809.4).
a.
Design characteristics.
1.
Location. Because of the narrow nature of the entrance courts, and the fact they accept two-way traffic, planting design in these areas must be minimal in quantity of trees, but relatively mature. A greater use of lower shrubs and groundcover is anticipated, along with more use of flowering trees instead of shade trees.
2.
Permitted species. The planting palette of materials shall consist of shade trees, ornamental trees, deciduous/evergreen shrubs, perennials, and turf.
3.
Shade trees.
i.
An average of one shade tree every 50 feet of street frontage shall be provided within areas that have a sidewalk apron. Spacing shall be varied adjusted with regard to other site features (such as driveways, fire hydrants, intersections, crosswalks, etc.).
ii.
Permitted species include: Thornless Honeylocust and cultivars, White Ash and cultivars, Ginko species, Norway Maple and cultivars, Little leaf Lindens, and Green Ash cultivars, or similar.
4.
Ornamental trees.
i.
May be utilized in spaces between the shade trees. Planting design shall have an appearance of a natural setting rather than a formal landscaping style.
ii.
Permitted species include: Japanese Tree Lilac, Snowdrift Crabapples, Spring Snow Crabapple, Ornamental pear varieties, Thornless Cockspur Hawthorne, and Amelanchier species or similar.
5.
Shrubs and groundcovers.
i.
Flowering shrubs, evergreen shrubs, and broadleaf evergreen groundcovers shall be used to create landscaping features in the entry court areas.
ii.
Permitted species include: Spirea cultivars, Juniper (chinensis compact)cultivars, Shrub rose cultivars, Japanese yew cultivars, Daylily cultivars, Sedum Cultivars, Rudbeckia cultivars, Pachysandra, Purpleleaf Wintercreeper, and Lamiastrum or similar.
Figure 122-809.4 Entry Court Landscaping
(i)
Parking lot screening. (See figure 122-809.5).
(1)
Design characteristics. The standards below are intended to provide for attractive, layered landscaping and visual screening of all parking areas.
a.
Planting schemes shall provide deciduous shade trees, evergreen trees, ornamental trees, and lower level shrub materials that provide non-transparent buffers with the following minimum plantings:
1.
Deciduous trees: one per 35 linear feet.
2.
Evergreen trees: one per 40 linear feet.
3.
Shrubs: one per three linear feet.
4.
Other plantings: (perennial flowers) one per one linear feet.
b.
Year round visual screen for parking areas. Plants shall be layered to affect a visual baffle as they grow together. For example: shade trees and evergreen trees are fronted with lower shrubs and flowering shrubs to create screening form the ground up.
c.
Screening shall be provided around the entire perimeter of all parking lots. Screening within entry courts shall be provided from all public and private streets.
d.
Spacing of trees and shrubs per 100 linear feet.
1.
Shade trees: one tree for every 40 to 60 feet center to center.
2.
Evergreen trees: one tree for every 15 to 20 feet spacing.
3.
Upright Cedar evergreens: one for every seven to 12 feet spacing.
4.
Shrub materials: one for every three feet to eight feet spacing.
Figure 122-809.5 Parking Lot Screening
(j)
Market Plaza landscaping. (See figure 122-809.6).
(1)
Minimum planting size.
a.
Deciduous trees: four-inch caliper minimum.
b.
Ornamental trees: three-inch caliper minimum.
c.
Evergreen trees: eight-foot height minimum.
d.
Evergreen shrubs: 18-inch height minimum.
e.
Deciduous shrubs: 18-inch spread minimum.
f.
Perennials: four-inch potted minimum.
(2)
Design characteristics.
a.
The plaza shall be designed as an urban plaza with brick, concrete or other high-quality surfacing, site amenities such as benches, trash receptacles, fountain art of similar focal point element, lighting and graphics. The overall design character of the space shall have a formal landscape design style.
b.
Pedestrian scale and comfort shall be provided at every level of the design of the area.
c.
There shall be extensive use of planter areas with shrubs, evergreens and groundcovers, similar to the materials used in the entry courts (see subsection (h)(4)).
d.
Trees shall be a combination of shade trees, ornamentals and evergreen trees.
1.
Shade trees.
i.
One tree per 350 square feet of paved area.
ii.
Permitted species include: Thornless Honeylocust and cultivars, White Ash and cultivars, Ginko species, Norway Maple and cultivars, Little leaf Lindens, and Green Ash cultivars or similar.
2.
Ornamental trees.
i.
May be utilized in spaces between the shade trees.
ii.
Permitted species include: Japanese Tree Lilac, Snowdrift Crabapples, Spring Snow Crabapple, Ornamental pear varieties, Thornless Cockspur Hawthorne, and Amelanchier species or similar.
3.
Shrubs and groundcovers.
i.
To bring the plaza to a more intimate scale, shrubs and groundcovers shall be used. Flowering shrubs, evergreen shrubs, and broadleaf evergreen groundcovers shall be used to provide color, texture and interest to the ground plane.
ii.
Permitted species include: Spirea cultivars, Juniper (chinensis compact)cultivars, Shrub rose cultivars, Japanese yew cultivars, Daylily cultivars, Sedum Cultivars, Rudbeckia cultivars, Pachysandra, Purpleleaf Wintercreeper, and Lamiastrum or similar.
4.
Perennials and annuals.
i.
Perennials and annuals shall be used throughout the plaza areas in planting beds and planters.
ii.
Permitted species would include grasses and wildflowers considered native to the upper Midwest region.
Figure 122-809.6 Market Plaza Landscaping Concepts
(k)
Lilly Creek Nature Reserve landscaping.
(1)
Landscaping in environmentally defined areas.
a.
Landscaping within defined wetlands and floodplains shall require approval of the Wisconsin DNR prior to approval by the village.
b.
All plantings within defined wetlands and floodplains if permitted by Wisconsin DNR and village shall be native plantings.
(2)
Landscaping in non-environmentally defined areas.
a.
General requirements.
1.
Deciduous trees. Minimum sizes (installed): three and one-half inch caliper minimum for deciduous trees.
2.
Evergreen trees: eight-foot height for evergreen material.
3.
Ornamental trees: sizes to be four-inch caliper (or ten-foot height) minimum.
(3)
Design characteristics.
a.
The use of native tree and shrub species, along with more random placements shall be provided. Emphasis shall be to provide deciduous and evergreen trees. The use of natural grasses shall also occur for stormwater runoff reduction and wildlife habitat enhancement as well as for visual effect.
1.
Shade trees.
i.
Minimum requirements: one shade tree per 750 square feet.
ii.
Permitted species include: Thornless Honeylocust and cultivars, White Ash and cultivars, Sugar Maple, Norway Maple and cultivars, American Lindens, Green Ash cultivars, Willow cultivars, Colorado Spruce, Norway Spruce, and Tamarack or Larch, or similar.
2.
Ornamental trees.
i.
Minimum requirements: one tree per 1,500 square feet.
ii.
More informal groupings are encouraged.
iii.
Permitted species include: Japanese Tree Lilac, Snowdrift Crabapples, Spring Snow Crabapple, Ornamental pear varieties, Thornless Cockspur Hawthorne, and Amelanchier species or similar.
3.
Shrubs and groundcovers.
i.
Native materials are recommended.
ii.
Permitted species include: Viburnum cultivars, Juniper (chinensis compact)cultivars, Shrub rose cultivars, Dogwood cultivars or similar.
(l)
Irrigation.
(1)
Irrigation within the nature reserve landscape area is not required, with the exception of establishment of plant material.
(2)
The areas in and around commercial, retail, service and residential developments shall have fully automatic irrigation systems installed for turf areas and these systems shall be maintained in good repair.
(3)
Irrigation systems that are for planting beds and planters shall be maintained in good repair.
(a)
General requirements.
(1)
Permitted site amenities/furnishings.
a.
The following site amenities/furnishings shall be permitted:
b.
Benches and seating.
c.
Trash receptacles.
d.
Advertising kiosks and newspaper boxes.
e.
Landscaping planters.
f.
Bicycle racks (see section 122-805).
g.
Site lighting (see section 122-811).
h.
Other furnishing approved by the village architectural control board.
(2)
Design continuity.
a.
Site amenities shall be coordinated to create a visually unified streetscape and to minimize streetscape clutter.
b.
Site amenities shall be coordinated with site lighting, site signage, etc. to minimize streetscape clutter.
(3)
Miscellaneous requirements.
a.
Site amenities shall be located as not to impede with or create hazards for pedestrians or vehicles.
b.
Site amenities shall be securely anchored to the ground or building.
c.
Site amenities shall be designed for universal use.
d.
Site amenities shall not be located within defined floodplains or wetlands.
(b)
Benches and seating.
(1)
Location.
a.
Benches and seating for pedestrians are permitted at the following locations:
b.
Street sidewalks or immediately adjacent to street sidewalks;
c.
Sidewalks and plazas located in open space areas, including, but not limited to, those dedicated open space areas required per section 122-803;
d.
Along the trail system in the Lilly Creek Nature Reserve.
(2)
Design/style.
a.
Benches and seating shall be of the following styles or other visually similar design approved by the architectural control board.
b.
In all areas, except the Lilly Creek Nature Reserve, benches and seating shall be selected from the Landscape Forms, Inc. "Presidio" Collection (see figure 122-810.1) or similarly designed style(s) approved by the village architectural review board.
c.
Along the Lilly Creek Nature Reserve trails, benches and seating that incorporate wood and other natural materials are permitted with approval of the village architectural review board (see figure 122-810.2).
Figure 122-810.1 Permitted Benches and Seating
Figure 122-810.2 Stylistic Examples of Permitted Lilly Creek Trail Benches and Seating
(c)
Trash receptacles.
(1)
Location.
a.
Trash receptacles shall be permitted at the following locations:
b.
Within the sidewalk apron of all streets.
c.
Sidewalks and plazas located in open space areas, including, but not limited to, those dedicated open space areas required per section 122-803.
d.
Along the trail system in the Lilly Creek Nature Reserve.
(2)
Design/style.
a.
Trash receptacles shall be of the following styles or other visually similar design approved by the architectural control board.
b.
In all areas, except the Lilly Creek Nature Reserve, trash receptacles shall be selected from the Landscape Forms, Inc. "Presidio" Collection (see figure 122-810.3) or similarly designed style(s) approved by the village architectural review board.
c.
Along the Lilly Creek Nature Reserve trails, trash receptacles that incorporate wood and other natural materials are permitted with approval of the village architectural review board (see figure 122-810.4).
Figure 122-810.3 Permitted Trash Receptacles
Figure 122-810.4 Stylistic Example of Permitted Lilly Creek Trail Trash Receptacles
(d)
Advertising kiosks and newspaper boxes.
(1)
Advertising kiosks and newspaper boxes may be permitted with the approval of the village architectural review board.
(2)
Locations.
a.
Advertising kiosks and newspaper boxes are permitted only at the following locations:
b.
Market Street sidewalk areas;
c.
Market Plaza.
(3)
Quantity.
a.
Advertising kiosks shall be limited to a total of three structures within the PDO-1.
b.
Newspaper boxes shall be located in groups and shall be limited to no more than three group locations. They shall be located with advertising kiosks whenever possible.
(4)
Design/style.
a.
Advertising kiosks and newspaper boxes shall be integrated into the design of the Market Street streetscapes and Market Plaza and shall be approved by the village manager or designee.
b.
Advertising kiosks and newspaper boxes shall be of complementary design, and of similar materials, to other site furnishings and adjacent buildings and shall be approved by the village manager or designee.
(e)
Landscaping planters.
(1)
Landscaping planters may be permitted.
(2)
Location.
a.
Landscaping planters are permitted only at the following locations:
b.
Market Street sidewalk areas.
c.
Market Plaza.
d.
Other locations approved by the architectural control board.
(3)
Quantity. The minimum and/or maximum number of landscaping planters will be defined by the architectural review board as part of the approval of the precise implementation plan(s) for the buildings within the commercial/retail district.
(4)
Design/style. Landscaping planters shall be of complementary design, and of similar materials, to adjacent buildings.
(a)
General requirements.
(1)
Exterior lighting usage. Exterior lighting shall be used for the following:
a.
Street.
c.
Pedestrian.
c.
Parking.
d.
Landscaping and architectural features.
(2)
Design continuity.
a.
Light fixtures, poles, etc. shall be coordinated to create a visually unified streetscape.
b.
Light fixtures, poles, etc. shall be complimentary in design to the architecture, site amenities, and other site furnishings of the PDO-1.
c.
Exterior lighting shall be coordinated with traffic signs, street signs, etc. to minimize streetscape clutter.
d.
Light poles shall be of similar design/materials, have decorative/articulated bases, and comprised of pre-finished aluminum, steel, or concrete.
e.
Banner or plant hanging standards are permitted on site lighting poles.
f.
Sound systems may be integrated into the lighting fixtures within the commercial/retail district only.
(3)
Illumination control. Exterior lighting shall be designed, located, and focused as to not project glare or excessive levels (greater than 0.9 foot-candles) of illumination on to adjacent properties, buildings, or open spaces; and not project light above the horizontal plane so as to illuminate the night sky, except for floodlights, security lights, and the lighting of architectural and landscape features.
(4)
Plan submittal. All lighting plans shall be submitted for review and shall include a site plan, lighting specifications (for fixtures, poles, and other elements), and photometric plan. All plans shall be submitted by a certified professional engineer.
(5)
Miscellaneous requirements. Exterior lighting shall be located as not to impede with or create hazards for pedestrians or vehicles and shall be prohibited within the Lilly Creek Nature Reserve.
(b)
Commercial/retail district and mixed residential district lighting. Exterior building lighting in the commercial/retail and mixed residential districts shall be integrated into the overall design of the building, with the fixtures of a complementary design to the building architecture, and limited to the following purposes:
(1)
Accent lighting to highlight specific architectural building elements.
(2)
Signage lighting to illuminate building signage.
(3)
Pedestrian lighting to illuminate outdoor spaces associated with a building.
(c)
Neighborhood edge district lighting. Exterior building lighting in the neighborhood edge district shall be integrated into the overall design of the building, with the fixtures of a complementary design to the building architecture, and limited to the following purposes:
(1)
Accent lighting to highlight specific architectural building elements and address signage.
(2)
Pedestrian lighting to illuminate outdoor spaces associated with a building.
(d)
Private street lighting. Street lighting shall be designed to meet the requirements as outlined in figure 122-811.1 below.
Figure 122-811.1 Street Lighting Requirements
(e)
Pedestrian area and walkway lighting.
(1)
Location. Exterior lighting for pedestrians shall be located along all sidewalks, within the Market Plaza, and other areas specifically designed for pedestrian use (see sections 122-803 and 122-804).
(2)
Pedestrian lighting requirements. Lighting for pedestrian areas shall be designed to meet the requirements as outlined in figure 122-811.2 below.
Figure 122-811.2 Pedestrian Lighting Requirements
Figure 122-811.3 Permitted Pedestrian Lighting Styles
(f)
Parking lot lighting.
(1)
Location. Parking lot lighting shall be provided in the exterior parking areas that serve to meet the parking requirements of the commercial/retail district.
(2)
Parking lighting requirements. Parking lot lighting shall be designed to meet the requirements as outlined in figure 122-811.4 below, and coordinated with Market Street lighting, found in subsection (b) above, so as to not exceed maximum illumination levels.
Figure 122-811.4 Parking Lot Lighting Requirements
Figure 122-811.5 Street and Parking Light Fixture Style
(g)
Landscaping and architectural lighting.
(1)
Landscaping and architectural lighting shall be permitted in the following areas:
a.
At entries and/or gateways of the PDO-1 to illuminate gateway signage and associated landscaping elements (see subsection 122-812(f)).
b.
To highlight interesting or unique architectural elements or focal points as they relate to the overall building design or the PDO-1 as a whole.
c.
To highlight interesting or unique landscaping elements or focal points as they relate to the overall landscaping plan or the PDO-1 as a whole.
d.
Other areas as approved by the architectural control board.
(2)
Landscaping and architectural lighting shall be ground or building mounted with the light source being concealed from direct viewing.
(a)
General requirements. The following design standards apply to signage within PDO-1.
(1)
Address signage shall comply with the requirements of this Code.
(2)
Permits for signs are required per chapter 78 of this Code. Permits are not required for all private street signs and private traffic signs.
(3)
Prohibited signage includes:
a.
Freestanding signs, except for group development signage;
b.
Other signage prohibited in subsection 78-6(1).
(b)
Commercial/retail building signage.
(1)
Design standards.
a.
Wall signage shall be integrated into the overall design of the building at the time of building approval.
b.
Awnings, canopies, permanent/seasonal banners, etc., which have readable copy and logos shall have colors, fonts, and overall design elements coordinate with the overall aesthetics of the building.
c.
Illumination.
1.
If illuminated, wall and address signage shall be externally or back lit.
2.
Internally illuminated "box" signs are not permitted.
3.
If illuminated, awnings, canopies and permanent/seasonal banners shall be externally lit.
d.
Materials.
1.
No foamboard, fiberglass, vinyl, plastic, or PVC signage is permitted unless approved by the architectural control board.
(2)
Sign regulations.
a.
Wall signs shall be limited to one sign per street frontage or public plaza for each tenant location as approved in a master sign program. Street frontage in this instance shall refer to public and private street(s).
b.
Wall signs shall comply with subsection 78-6(3)(a)(2) of this Code.
c.
Freestanding signs shall comply with subsection 78-6(3)(a)(3) of this Code.
d.
Window signs shall comply with subsection 78-6(3)(a)(4) of this Code.
e.
Awnings, canopies, permanent/seasonal banners, which have readable copy and logos shall be considered part of the building signage. Copy and logos shall only be located on the fringe band of awnings and canopies. The area of the copy on such elements shall count towards the maximum permitted area for wall signs and may be cumulative. The total area of all wall signs, awnings, canopies signs, permanent/seasonal banners shall not exceed the square footage requirements of section 78-6 of this Code.
f.
Temporary signage shall comply with subsection 78-6(7) of this Code.
(c)
Mixed residential building signage.
(1)
Design standards.
a.
Wall signage shall be integrated into the overall design of the building at the time of building approval.
b.
Awnings, canopies, permanent/seasonal banners, etc., which have readable copy and logos shall be considered part of the building signage.
c.
Illumination.
1.
If illuminated, building and address signage shall be externally or back lit.
2.
Internally illuminated "box" signs are not permitted.
d.
Materials.
1.
No foamboard, fiberglass, vinyl, plastic, or PVC signage is permitted unless approved by the architectural control board.
(2)
Sign regulations.
a.
Wall signs:
1.
Commercial/retail uses shall comply with subsection 78-6(3)(a)(2) of this Code.
2.
Residential uses shall comply with section 78-7 of this Code.
b.
Freestanding signs:
1.
Commercial/retail uses shall comply with subsection 78-6(3)(a)(3) of this Code.
2.
Residential uses shall comply with section 78-7 of this Code.
c.
Window signage shall comply with subsection 78-6(3)(a)(4) of this Code.
d.
Awning, canopies, and banners shall only be permitted for commercial/retail uses within the mixed residential development and shall count as part of the overall permitted signage for the use. Such signage shall comply with subsection 78-6(3)(b)(1) of this Code.
e.
Temporary signs shall comply with subsection 78-6(7) of this Code.
(d)
Neighborhood edge building signage.
(1)
Design standards.
a.
Address signage shall be integrated into the overall design of the building and located at the pedestrian level of the building, in close proximity to the primary entrance of the respective address.
b.
If illuminated, address signage shall be only externally lit.
c.
No foamboard, fiberglass, vinyl, plastic, or PVC signage is permitted unless approved by the architectural control board.
(2)
Sign regulations.
a.
Awnings, canopies, etc. shall not contain text or graphics.
b.
Permanent window graphics are not permitted.
c.
Signage shall comply with sections 78-6 and 78-7 of this Code.
(e)
Development signage.
(1)
Types of signage: Site signage shall be permitted for the following:
a.
Gateway signage/monument signage.
b.
Street signage.
c.
Traffic signage.
(2)
Design standards.
a.
Site signage shall be complimentary in design to the architecture, site amenities, and other site furnishings of the PDO-1.
b.
Site signage shall be coordinated with site lighting, site amenities, etc. to create a unified development and to minimize streetscape clutter.
(3)
Miscellaneous requirements.
a.
Site signage shall be located as to not impede with or create hazards for pedestrians or vehicles.
b.
Site signage shall be securely anchored to the ground or building.
(f)
Gateway and monument signage. Shall comply with subsection 78-6(3)(b)(6) of this Code.
Figure 122-812.1 Examples of Acceptable Monument Signs
(g)
Private street signage.
(1)
Sign permits are not required for street signage. Approval of street signage shall occur with a master sign program for the overall PDO-1.
(2)
Location.
a.
Street signage is required at the following locations:
1.
The intersection of the residential drive and Appleton Avenue;
2.
The intersection of the residential drive and the residential street;
3.
The intersection of the residential street and the market street.
b.
Street signage is permitted at all road/street intersections not listed above.
(3)
Design standards.
a.
Street signage shall be coordinated with, and may be incorporated onto, street lighting poles.
b.
Street signage shall not exceed a height of 12 feet above the adjacent ground plane.
c.
No foamboard, fiberglass, vinyl, plastic, or PVC signage is permitted unless approved by the architectural control board.
d.
Street signage shall incorporate light reflective lettering for street names.
(4)
Illumination.
a.
Internally illuminated signs are not permitted.
b.
Street signage shall only be illuminated by the general light levels of the streetlights and by vehicular traffic lights.
(h)
Private street traffic signage.
(1)
Design standards.
a.
Traffic signage shall be coordinated with, and be incorporated onto, street lighting and/or street signage poles.
(2)
Illumination.
a.
Street signage shall only be illuminated by the general light levels of the streetlights and by vehicular traffic lights.
(a)
Introduction. Successful communities leverage their land use, open space, and transportation plans in a manner which creates a clear sense of scale, transition, and activity towards a hierarchy in strong and memorable community experiences. The foundation of such a hierarchy is the creation of development districts that form a positive collective identity when viewed in total. To achieve such a positive end result, each district should have a unique character defined through its land use mix and physical design.
Recognizing that the central portion of Main Street in their community lacked such a recognizable character and had regulations which might only compound this challenge, the village prepared a vision for the Main Street redevelopment area generally bounded on each side by the Main Street/Highway 41/45 interchange and the Main Street/Pilgrim intersection. This vision was prepared through a process infused with public input and calls for a collection of land uses positioned to provide a more sustaining mix of uses and activities than current development generally affords. This area, now known as the Main Street redevelopment district, intends a rich tapestry of neighborhood identities encouraging new development and redevelopment.
(1)
The community also recognizes that a key area along the freeway was lacking in a recognizable character and facing future changes to land use as older industrial structures become obsolete. The village prepared the northeast area neighborhood plan, which was adopted as a component of the comprehensive plan for the village. This vision was prepared through a process with public input and calls for a collection of land uses positioned to provide a sustaining mix of uses along the 41/45 corridor. This area is commonly referred to as the Richfield Way Extension.
(2)
In order to implement these visions, the design standards affecting development are intended to be consistent with the vision behind their intent. To accomplish this goal, the Main Street redevelopment district has been subdivided into a series of development sub-districts and the development restrictions that will be necessary to achieve their collective individuality.
(b)
Purpose. The purpose of these standards is to define the character of new development within each sub-district and is intended to help create new development patterns that are consistent with the vision and recommendations of the village comprehensive plan and Main Street redevelopment plan. These guidelines have been written to define specific standards necessary towards the creation of a mixed use, streetscape-oriented development. They have been carefully designed to allow enough flexibility for creative building solutions, while being prescriptive in areas necessary to preserve consistency the Main Street district requires.
(c)
Goals.
(1)
Encourage private investment in residential, commercial and office developments.
(2)
Eliminate blighting influences.
(3)
Diversify the local economy through tax base and job creation.
(4)
Create a well-planned, safe and healthful area.
(5)
Provide cleared and fully improved sites for mixed use projects to include residential, commercial and office development.
(6)
Improve traffic and pedestrian circulation linking new development with established adjacent residential neighborhoods.
(7)
Improve stormwater facilities and integrate stormwater management into landscaped areas.
(8)
Provide opportunities for multiple types of upscale housing.
(d)
Intent.
(1)
To provide a comfortable and attractive environment for pedestrians which include such things as buildings framing public space, street trees, lighting and awnings that will attract pedestrians and public activities.
(2)
To construct buildings close to the sidewalk and street.
(3)
To construct continuous building frontage along block faces except where it is desirable to provide for pedestrian and auto pass-throughs to parking at mid-block.
(4)
To provide shared parking both on-street and in the center of blocks that will benefit the entire district.
(5)
To contribute to the definition and use of public parks and plazas.
(6)
To design streets and buildings that will create a safe environment.
(a)
Authority. A regulating plan is the coding key for application of this district's provisions to properties, and shall be considered part of this zoning district.
(b)
Regulating plan. The PDO-2 is divided into three different districts.
Figure 122-821.1 Regulating Plan
(c)
Master plan. The master plan for the PDO-2 shall meet the following site development requirements within each sub-district:
(1)
Falls Parkway sub-district. This area emphasizes the transition of uses from the highway to the existing residential areas to the south. It is the vision of this area to provide a newly created street extension that will integrate commercial developments with mixed-commercial and multi-family residential uses.
This pattern of redevelopment will provide better connections between the higher intensity commercial uses and lower intensity residential uses. This sub-district employs an area for the more intense commercial uses along the highway frontage, and an area for properties making a connection from adjacent neighborhoods.
Figure 122-821.2 Falls Parkway Sub-District Area Classifications
a.
Commercial. Retail, restaurant, office uses.
b.
Mixed use. Multi-family, retail, restaurant, office uses.
c.
Multi-family. Multi-family with total unit counts between 315—335.
(2)
Main Street sub-district. This area is planned for commercial and residential uses that blend with existing commercial and residential developments.
Figure 122-821.3 Main Street Sub-District Area Classifications
a.
Commercial. Retail, restaurant, office uses.
b.
Mixed use. Multi-family, retail, restaurant, office uses with densities up to 20 units per acre.
c.
Single-family. Single-family houses with densities up to six units per acre.
(3)
East of the highway sub-district. This area is planned for commercial and light industrial uses that blend with existing abutting uses.
Figure 122-821.4 East of the Highway Sub-District Area Classifications
a.
Commercial. Retail, restaurant, office, and medical uses.
b.
Industrial. Machinery or equipment wholly enclosed within a building compatible with first class corporate and professional offices, office, and medical uses.
Figure 122-822.1 Circulation Plan
(a)
Planned streets and circulation systems. All roads shall be planned according to Figure 122-822.1.
(b)
Street pattern. The precise location of streets shall be determined in conjunction with approval of the concept and development plans.
(c)
Ownership. All roads within the PDO-2 shall be public roads unless otherwise approved by the village board as a private street.
(d)
Sidewalks. Sidewalks and pedestrian connections shall be installed in conjunction with the construction of new streets and new developments in accordance with figure 122-822.1.
(a)
Landmarks.
(1)
The PDO-2 has a number of key landmark structures that help define gateways and a unique place. The landmark buildings shall have key features and elements designed to complement the adjoining public spaces. Examples include those identified in figures 122-823.1 through 122-823.4.
a.
Landmark buildings. A building which is located on axis with a terminating street, or a street intersection or focal point. Such buildings shall incorporate architectural feature which address height and articulation that emphasize the important of such a location.
b.
Landmark gateways. A gateway which is an entry to a commercial development, intersection, node or other identifiable place that has distinguishing features which may include all or a number of the following: architecture with unique building features such as special corner treatments, enhanced streetscape features such as pavement or lighting, specialized landscaping features that create a place, landscape plantings that are used to create a place.
c.
Landmark building features. The feature may include a tower element, unique patterning of facade, bay or bow window element, building element with a height variation from the rest of the building, as well as other solutions.
d.
Determination. When there is a question as to landmark elements the item shall be referred to the architectural control board for interpretation.
Figure 122-823.1 Example of a Landmark Building with a defined corner tower Treatment
Figure 122-823.2 Example of a Landmark Building with a defined corner entry
Figure 122-823.3 Example of a Landmark Building with a defined corner towner element
Figure 122-823.4 Example of a Landmark Building with a corner setback from street
(2)
Locations of landmarks. The locations of landmarks shall at a minimum be located as defined in figures 122-823.5, 122-823.6 and 122-823.7.
Figure 122-823.5 Landmark Building and Feature Map in the Falls Parkway Sub-District
Figure 122-823.6 Landmark Building and Feature Map in the Main Street Sub-District
Figure 122-823.7 Landmark Building and Feature Map in the East of Highway Sub-District
(a)
Principal uses.
(1)
Commercial.
a.
Service, general and regional retail, restaurant without drive-through, office, medical, and mixed use residential buildings or structures.
b.
Restaurants with outdoor dining are subject to:
1.
All outdoor furniture shall be of a material other than molded plastic.
2.
Outdoor dining areas shall be kept free of litter at all times.
3.
Outdoor furniture and equipment shall be compactly stacked on a nightly basis and secured in a manner that furniture cannot leave the outdoor dining area.
4.
All furniture associated with outdoor dining shall be removed between November 1 and March 1.
(2)
Residential. Single-family, apartments, condominiums, and live-work units.
(3)
Mixed use. Any combination of commercial or residential uses.
(4)
Light industrial. Office, manufacturing, processing and assembly of products with machinery and equipment wholly enclosed within a building, and an exterior appearance compatible with first class corporate and professional offices.
(b)
Conditional uses. Conditional uses shall be required per article IV of this chapter.
(c)
Prohibited land uses. Any land use that is hazardous, harmful, noxious, offensive or a nuisance to the surrounding neighborhood.
(a)
East side of highway. Landscaping shall be continuous along block faces within this sub-district to create an attractive development adjacent to the freeway corridor. Landscaping shall be the predominate feature viewed from the street, creating a park-like setting for pedestrians.
(b)
Street extensions. Variation and opportunities for outside dining, pocket parks, lawns, gardens, and special building entry features.
(c)
Parking. Parking areas shall not be exposed to the streetscape and shall require walls, berms, vegetation or a combination for screening.
(d)
Facades. Facades shall generally be built parallel to the street frontage, except at street intersections, where a facade containing a primary building entrance may be curved or angled toward an intersection. Where a street frontage is an actual curve, the building facade shall curve with the right-of-way, or have steps and other architectural elements built into the design to define the right-of-way.
(e)
Private streets and internal circulation. Private streets and internal circulation areas that are designed to accommodate vehicles and pedestrians shall comply with the criteria within this section. Connections to allow easy pedestrian and vehicular access for the existing neighborhoods to the Falls Parkway redevelopment area shall be made.
(f)
Setbacks.
(1)
Accessory structures. Accessory structures shall be located behind the principal building with a minimum setback of five feet from all lot lines.
(2)
Fences. Setbacks for fences shall comply with subsections 122-669(1), (2), and (4) of this Code.
(a)
Intent.
(1)
It is the intent of this section to create an attractive and active village-style district. The size, disposition, function and design of buildings play an important role in achieving that goal.
(2)
Buildings shall directly contribute to the attractiveness, safety and function of the street and public areas.
Figure 122-826.1 Building Architecture Should Address the Street and Engage the Pedestrian
(3)
Buildings that accommodate first-floor retail shall feature architectural elements that allow for pedestrian-style retail activity.
(4)
Buildings shall be constructed in a manner, and with materials, that are highly durable, will continue to endure and be attractive over a long period of time, especially adjacent to public and pedestrian areas.
Figure 122-826.2 Residential Architecture Shall Create a Village Character, While
Addressing the Streetscape
(5)
It is intended by this zoning district to encourage a variety of building and design solutions in response to the standards and regulations outlined herein.
(b)
Building form.
(1)
Human scale. Building façades fronting public streets, private streets, and driveways shall have massing changes and architectural articulation to provide visual interest and texture to avoid oversimplified one-dimensional façades lacking human scale.
(2)
Architectural elements. Architectural elements including projecting volumes, windows, balconies, loggia, canopies, pediments, and moldings that break up the mass of the building are required.
(3)
Tripartite architecture. All buildings shall be designed and constructed to emphasize tripartite architecture that have a distinct "base, mid-section, and top."
a.
General.
1.
Base. The base of all buildings within this district shall have a minimum height of three feet.
2.
Middle. The middle portion of the building is the area from the base to the top.
3.
Top. The top of all buildings shall have an articulated cornice element. In the case of buildings with a mansard, gabled, or pitched-style roof the roof shall act as the top. Buildings that have a flat roof with parapet shall have the cornice and parapet defining the top.
Figure 122-826.3 Large Commercial Building Showing Tripartite Architecture
Figure 122-826.4 Small Commercial Building Showing Tripartite Architecture
b.
Mixed-use commercial districts. The base of all buildings within this district shall have a minimum height of three feet and may, at a maximum, articulate the entire first floor as a base.
Figure 122-826.5 First Floor Base
c.
Mixed-use residential districts. Buildings that are greater than two stories may articulate the entire first floor as a base.
d.
Commercial districts. Buildings with this district shall employ a strong base that relate to human scale. The base of the building shall have minimum height of three feet.
e.
Medium density and low density residential. The base of a structure within these areas shall be a simple foundation with a brick or brick-like finish. The base shall not include the first floor.
(c)
Windows.
(1)
All windows shall have a vertical proportion.
Figure 122-826.6 Example of Windows with Vertical Proportions
Figure 122-826.7 Example of Windows Vertical Proportions
Figure 122-826.8 Example of Windows with Horizontal Proportions that are not permitted
Figure 122-826.9 Windows with Minimum Four-Inch Reveal
Figure 122-826.10 Windows with Minimum Four-Inch Reveal
(2)
No reflective glass is allowed. Tinted glass that allows for vision into and out of the structure is allowed with approval by the architectural control board.
(3)
No exterior security elements shall be permitted. Window security shall be through electric or other technical means.
(d)
Entries and doors.
(1)
Mixed used.
a.
Each building and separate lease space at grade along a street edge shall have a functioning primary entry from the sidewalk.
(2)
Commercial.
a.
Each building and separate lease space at grade along a street edge shall have a functioning primary entry from the sidewalk.
b.
Secondary entries may not be inset less than three feet. Entries at alleys and service doors require no inset.
c.
Corner entries may count as a primary entry for both intersecting street frontages.
(3)
Residential. All buildings for residential uses shall have a primary entrance from the sidewalk.
(e)
Architectural building elements.
(1)
Awnings. An awning may be located over doors, windows and entries to protect storefronts from sunlight, and pedestrians from inclement weather.
a.
Awning construction and design standards.
1.
Awnings are allowed to project six to eight feet and must have a minimum clearance of seven feet from grade, except as regulated in subsection (f)(1)a.8. of this section.
2.
Awnings must be professionally constructed of canvas or metal and cannot be made of vinyl.
3.
All internal support structures must be made of metal and painted or finished to coordinate with the awning color and coloration of the building or storefront.
4.
Panels enclosing the underside of an awning are not permitted.
5.
In no case can the supporting structure of an awning extend into or over the street curb. Awnings must end a minimum of two feet from the curb edge. In instances where an awning encroaches into areas where streetlights, trees or other obstacles in the streetscape conflict, the awning must be reduced in size (overhang) so as to eliminate the conflict.
6.
Awnings may be lighted from above with lighting affixed to the building. All lighting must be shielded to prevent the light from shining directly into traffic, upper floor windows or pedestrians' eyes.
7.
The awning may not be internally illuminated.
(2)
Canopies. A canopy is a covered area which extends from a wall of a building, protecting an entrance.
a.
Canopy construction and design. Canopies may be made out of wood, metal or glass, but all support structures must be made of metal.
1.
Canopies are allowed to project over a sidewalk to a maximum of six to eight feet and must have a minimum clearance of seven feet from grade except as required in subsection (4) of this section.
2.
Canopies may have side panels, and may have a panel enclosing the underside of the canopy.
3.
Canopies may be lit from above with lighting affixed to the building. All lighting must be shielded to prevent the light from shining directly into traffic, upper floor windows or pedestrians' eyes.
Figure 122-826.11 Example Use of Canopy
4.
In no case can the supporting structure of a canopy extend into or over the street curb. Canopies must end a minimum of two feet from the curb edge. In instances where canopies encroach into areas where streetlights, trees or other obstacles in the streetscape conflict, the canopy must be reduced in size (overhang) so as to eliminate the conflict.
(3)
Building lighting. Building illumination is an important element of creating a unique feeling in the evening hours. Building illumination is encouraged within this district provided the lighting addresses the following:
a.
Building lighting shall not be designed or installed in such a manner that the light shines directly into traffic, upper floor windows, or pedestrians' eyes.
b.
Illumination shall provide an overall warm appearance and the lighting shall not create "hot spots" on the façade.
c.
All canopies shall have recessed lighting where the light fixture is not visible.
d.
Lighting elements such as conduit, electrical wiring, connection boxes, and transformers shall not be exposed.
Figure 122-826.12 Example of Building Lighting
(4)
Landmark buildings, building elements, and structures. Landmark buildings shall be articulated by one or more of the following elements:
a.
Offsets from the front wall plane.
b.
Elements extending above the main building eave or parapet line.
c.
Elements with special nighttime lighting effects.
d.
Defining the architectural element by using a complementary but slightly different building material.
e.
Designed to have a unique massing such as a tower, bay, curved wall, or other unique shape.
Fighe 122-826.13 Use of Unique Massing on a Landmark Building
(f)
External façade materials and design.
(1)
Intent. The material requirements described herein are intended to provide a uniform character and complimentary material relationship between buildings, promote the perception of strength and permanence of each building, while maintaining appropriate variety for design flexibility. Building materials shall be durable, sustainable and of high quality, with sufficient variation to create visual interest and diversity, and to reduce the scale of large building masses.
(2)
Relationship to context.
a.
New building designs shall consider the design and activities of any adjacent planned building designs in relation to building access, parking areas, service areas, building setbacks, building heights, materials, and colors. Shared service areas shall be utilized whenever possible.
b.
No two buildings shall be exactly alike. Variations in building massing, roof planes, fenestration patterns, material usage, and color are required.
(3)
General building materials.
a.
The unique usage and treatment of exterior building materials is permitted. However, a building's material palette shall include materials similar or compatible to other buildings located within the district.
b.
The primary materials that are preferred for use on façades are:
1.
Stone veneer (including manufactured stone).
2.
Brick veneer.
3.
Fiber-cement siding/trim.
4.
Wood siding/trim.
5.
Wood or metal windows/storefront systems.
6.
Fiberglass roof shingles.
7.
Metal roof systems.
8.
Tile or slate roof systems.
9.
Other materials specifically approved on a case-by-case basis by the architectural control board that are not prohibited or are allowed in limited quantities or circumstances.
c.
The primary accent materials that are discouraged are:
1.
Vinyl siding.
2.
Vinyl windows.
3.
PVC siding/trim material.
4.
Smooth, unfinished or untextured concrete masonry units or concrete walls.
5.
Simulated wood siding.
6.
Plastic siding.
7.
Reflective glass.
8.
Metal siding.
9.
Concrete masonry units with or without texture.
10.
Other materials not allowed by the village architectural control board.
d.
Materials allowed within limited qualities or circumstances:
1.
Exterior insulating and finishing systems (EIFS). Stucco and EIFS shall be used only for walls, architectural features, and embellishments not subject to pedestrian contact.
2.
Pre-cast concrete for use of architectural elements such as windowsills, lentils, arches, cornices and similar.
3.
Concrete masonry units with standard clay brick dimensions, when used at rear elevations, service areas, and not pedestrian areas.
4.
Metal panel systems.
5.
Other materials specifically approved on a case-by-case basis by the architectural control board.
Figure 122-826.14 Example of Appropriate Material Combination
(4)
Corner returns. Where a wall turns a corner, the surface materials shall continue around the corner a minimum of eight feet.
Figure 122-826.15 Example of Appropriate Material Corner Return
(5)
Compatibility of adjoining buildings. Façades of buildings visible from adjoining properties should feature design characteristics similar to the adjoining building. This shall only apply for new construction within the district.
Figure 122-826.16 Example of Compatible Adjoining Buildings
Figure 122-826.17 Example of Compatible Adjoining Buildings
Figure 122-826.18 Example of Non-Compatible Adjoining buildings
(6)
Roof materials.
a.
Flat roofs. These types of roofs shall use EPDM (elastomeric membrane), TPO (thermoplastic polyolefin), PVC membrane or similar with parapet walls. Metal copings are permitted on parapets.
b.
Gabled, sloped and mansard roofs. These types of roofs shall use slate, wood, dimensional asphalt, copper shingles or standing seam, and standing seam metal roofs.
c.
Green roofs. These types of roofs are partially or completely covered with plant material and are used for roof top gardens or for stormwater management.
(7)
Color.
a.
Masonry material components. Masonry materials shall be representative of the native and regional materials which include limestone; Lannon stone in buff colors; and clay materials in cream, brown, and red tones.
b.
Wood and other material components. Wood and other building colors shall be representative of the region. Warm colors should be emphasized.
c.
Trim and accent components. Garish, highly reflective, fluorescent, and metallic colors shall not be used.
(8)
Roof colors.
a.
Membrane roofs.
1.
The color of the aggregate or the rubber membrane shall be black or a natural earth tone.
2.
Coping details. The coping color shall coordinate with the façade of the building and shall be a color that blends away. The coping shall not be highlighted by a color to signify it as a separate architectural element.
b.
Sloped roofs.
1.
Roof colors shall be a shade of gray, brown or red, natural copper allowed to patina.
(9)
Compatibility between storefronts within the same building. Colors of individual storefronts within a larger building shall be complementary and within the same tonal value of the rest of the building.
(10)
Natural finishes. Unpainted metal or metal subject to ordinary rusting shall not be used as a building material. Factory-finished metal elements as well as metals that develop an attractive oxidized finish, such as copper, galvanized metal or weathering steel, may be used as architectural accents subject to specific approval by the architectural control board.
(11)
HVAC, utility meters, and mechanical screening. Meters, transformers and other devices associated with a building are encouraged to be located within the building when possible. When they must be located on the exterior of the building the following shall apply:
a.
Roof mounted.
1.
All roof-mounted mechanical elements must be screened from view from the public right-of-way and neighboring properties.
2.
Screening must be architecturally compatible with the building design. Appropriate screening may include wall screening, parapet design.
3.
Rooftop units that will be located on the roofs of buildings that will be shorter than surrounding buildings must either be screened or arranged in a manner to allow for an aesthetically pleasing view from above as approved by the architectural control board.
b.
Ground mounted. Ground-mounted elements shall be designed to coordinate with the landscaping and other design elements of the development to minimize the appearance of such units. Appropriate screening includes, but is not limited to, landscaping, masonry walls, and faux elements such as rocks.
c.
Wall mounted. Mechanical and electrical equipment, transformers, meters, shall be located at the rear of buildings and painted to blend with the building color.
1.
When it is not physically possible to locate electrical equipment, meters and similar devices on the rear of a building, the architectural control board may grant approval of an alternative location, provided that every effort is made to minimize the visual appearance of such devices from all pedestrian areas, rights-of-way, and adjoining properties.
(12)
Dumpster screening requirements.
a.
Commercial. It is preferred that, whenever possible, all waste containers shall be located within the buildings. However, when waste containers must be located on the exterior of the building, the dumpsters shall be screened according to section 71-91 of this Code. Whenever possible, dumpster enclosures shall contain multiple dumpsters and shared enclosures are strongly encouraged.
b.
Residential. All waste containers shall be located within buildings or shall be screened per section 71-91 for multi-unit structures. Single-family units shall screen the exterior waste containers with fencing or landscaping so as not to have the containers visible from any public or private street, or adjoining property.
(13)
Loading and service areas. Loading, service and storage areas shall be screened from all public roadways and pedestrian areas. The required screening must be composed of the same exterior materials as the buildings on the lot, or through the use of masonry walls, ornamental fence 80 percent opaque, evergreen landscape material, or combination thereof.
(14)
Accessory structure. All accessory structures shall be designed with the same architectural style and building materials as the principal structure.
(15)
Garden walls and fences. All fences shall be designed with the same architectural style of the building. Appropriate fence materials include wood, metal and masonry. Plastic or PVC fencing shall not be permitted. The maximum height of fences shall not be greater than four and one-half feet, unless required to be taller in the state statutes. All fences shall have the "bad" side of the fence facing toward the inside of the lot when not visible from a right-of-way. Fences with two "good" sides are preferred. All fences adjacent to rights-of-way shall be open fences. Garden walls shall be constructed of masonry to match the building masonry.
(16)
Modifications and deviations. The architectural control board may modify or deviate the standards of this section if the applicant can show an improved architectural design that does not degrade the quality of the public areas or directly contrast with the vision for this district.
(a)
Intent.
(1)
Signage will play an important role in creating an interesting village experience within the PDO-2.
(2)
Signs must be of high-quality design.
(3)
Signage shall not interfere with residential uses.
(b)
Signage review. Shall comply with section 78-2 of this Code.
(c)
Permits and procedures. Shall comply with section 78-3 of this Code.
(d)
Temporary signs. Shall comply with subsection 78-6(7) of this Code.
(e)
Penalties. Shall comply with section 78-4 of this Code.
(f)
Construction standards. Shall comply with section 78-5 of this Code.
(g)
Appeals and exceptions. Shall comply with section 78-11 of this Code.
(h)
Installation. All electrical transformer boxes, conduits and raceways shall be concealed from public view.
(i)
Encroachments. No signs may encroach into the public right-of-way lower than ten feet from grade, and may not be any closer than three feet from the back of curb of any public or private street. All signage must be located three feet from all street furnishings, such as streetlights, street signs and similar.
(j)
Directional signage. Directional signage shall comply with subsection 78-6(10) of this Code.
(k)
Master sign programs. Master sign programs are required for all developments with more than one tenant.
(1)
Master sign programs shall be designed to complement the style, color and materials of the building. Signage programs shall be designed to integrate with the building façade.
(2)
Sign programs which provide attractive combinations of type and styles encouraged. Within the master sign program, the program shall be designed to have some common features amongst all signage, such as shape, colors, or type.
(3)
The minimum distance between adjoining signs should be 36 inches or as defined by an approved master sign program.
(4)
Repetitious signage information on the same building frontage shall be avoided.
(5)
New and remodeled building designs shall provide logical sign areas, allowing flexibility for new users as the building is re-tenanted over time.
(6)
All master sign programs must be approved by the architectural control board.
(l)
Maximum signage allowances.
(1)
Commercial developments within commercial or mixed use areas of PDO-2 are allowed a total of two sign types. The types that are allowed are:
a.
Awning sign.
b.
Canopy sign.
c.
Wall sign.
d.
Arcade sign.
e.
Vertical projection sign.
f.
Banner signage.
g.
Additional sign types may be permitted with the approval of the architectural control board.
h.
Additionally, all commercial establishments are allowed one of each of the following types of signs:
1.
Small blade sign per street façade.
2.
Window sign per window.
3.
Rear of building sign per rear entry.
(2)
Residential developments within mixed use, multi-family residential, or single-family residential areas of PDO-2 are allowed signage as follows:
a.
House number shall be affixed to all structures per chapter 90, article IV of this Code.
b.
Residential units and or developments are allowed signage as defined in section 78-7 of this Code.
c.
Developments with five or more residential units are allowed one of the following sign types: entrance signs, awning signs, canopy signs, wall signs, or small blade signs.
d.
Signs shall be formal and restrained in design. Brass or bronze plaques are appropriate. Animated and neon signs are not allowed in residential developments.
e.
Temporary marketing and construction signs may be installed for a period of six months, renewable at the discretion of the village departments. Such signs shall be limited to one sign per building or development, and may be freestanding in the front yard, attached to construction scaffolding, or located inside a window. They shall be no larger than six square feet, and if freestanding, no higher than 54 inches. Materials should be wood or metal and painted no more than three colors. Signs are not to be illuminated.
(3)
Highway-oriented signs for commercial land use areas.
a.
Commercial developments consisting of two or more commercial establishments where the property is located within 200 feet of Interstate 41 may have one of the following sign types:
1.
Accessory structure wall sign.
2.
Large vertical projecting sign.
3.
Large wall sign.
4.
Monument sign.
(m)
Allowable sign types.
(1)
Accessory structure wall sign. An accessory structure wall sign is a sign mounted to an accessory structure. The accessory structure may be a gazebo, tower, pergola, archway, or other similar accessory structure.
a.
Size. May not exceed 100 square feet. In no circumstance may the sign exceed 75 percent of the wall area on which it is erected.
b.
Location.
1.
Shall be mounted on the accessory structure.
2.
Shall not extend more than 12 inches from the face of the structure.
c.
Illumination. Shall comply with subsection 78-6(1)(d) of this Code.
Figure 122-827.1 Example of an Accessory Structure Wall Sign
Figure 122-827.2 Example of an Accessory Structure Wall Sign
Figure 122-827.3 Example of an Accessory Structure Wall Sign
(2)
Arcade signs. An arcade sign is a panel erected parallel to a building façade and within the opening of an arcade. Arcade signs must be supported for their entire length by metal brackets, grillage or supports.
a.
Size. The length of an arcade sign cannot exceed 75 percent of the arcade entrance on which it is erected.
b.
Illumination. Shall comply with subsection 78-6(1)(d) of this Code.
Figure 122-827.4 Example of an Arcade Sign
Figure 122-827.5 Example of an Arcade Sign
(3)
Awning signs. An awning sign is a sign that is applied to, attached to or painted on an awning intended for protection from the weather or as a decorative embellishment.
a.
Size.
1.
Front and side panels. Any awning may have one sign located on the front or a side vertical panel.
2.
Primary entrance—Sloped portion. Awnings located over the primary entrance of a building may have one store logo or the store name applied.
b.
Copy area.
1.
Side panels. Seventy-five percent of the area of the vertical surface of the side panel may contain signage.
2.
Slope panel. Forty percent of the area of the awning slope may contain signage.
Figure 122-827.6 Example of Awning Signage Copy Area
Figure 122-827.7 Example of Awning Signage
Figure 122-827.8 Example of Awning Signage
(4)
Banner signage.
a.
Size. Maximum 40 square feet.
b.
Height. The maximum height shall be 12 feet.
c.
Design. Support brackets shall be architecturally significant and shall have an architectural character that corresponds with the building architecture.
d.
Location of signage. Mounted above 16 feet on the second story of a structure.
e.
Illumination. Shall comply with subsection 78-6(1)(d) of this Code.
Figure 122-827.9 Example of Banner Signage
Figure 122-827.10 Example of Banner Signage
(5)
Canopy signs. A canopy sign shall be proportional to the canopy which it is affixed.
a.
Size. The sign may not be greater in size than ten percent of the size of the front face of the canopy of which it is a part of, attached to, or a maximum of 30 square feet, whichever is greater.
b.
Height. Sign shall not exceed two feet in height.
Figure 122-827.11 Example of a Canopy Sign
Figure 122-827.12 Example of a Canopy Sign
(6)
Monument sign. Shall be setback a minimum of five from all property lines, located outside of the vision corner established in section 122-601, and meet the area, height, and landscape requirements of section 78-6(3)(a)(3).
Figure 122-827.13 Example of a Monument Sign
Figure 122-827.14 Example of a Monument Sign
(7)
Rear of building tenant identification signs. Rear of building tenant identification signs are signs used to identify rear entries of tenant spaces.
a.
Size. Rear of building signs cannot exceed 15 square feet in area when sign identifies a rear public entrance to the building or tenant space. When the rear of building sign identifies a tenant's service door, this sign shall not be larger than eight square feet.
b.
Number. One rear of building sign per tenant is allowed on the rear face of the building or tenant space if there is a public entrance to the building or tenant space from the rear of the building. In addition, one sign is allowed per each tenant service door.
c.
Types and materials. Rear of building signs may be wall signs or window signs and may be made of the same materials that are permitted for these signs.
d.
Location. The rear of building signs shall only identify tenants in the building or tenant space to which the sign is attached. Tenant service doors shall be identified with a sign applied to the door or on the wall within two feet of the service door.
(8)
Small blade signs. A blade sign is a tenant identification sign on a pedestrian level which uses letterforms, logo, and/or graphic elements and projects at a right angle from the face of a building.
a.
Size. The size of a small blade sign cannot exceed 12 square feet in area. The support structure is not included when calculating area.
b.
Height and location. Top of sign shall be aligned with window transom and bottom of sign shall maintain a clearance of ten feet above ground.
c.
Design.
1.
Support structures for small blade signs must be decorative and made of metal. Supports must be engineered to support local wind loads.
2.
The sign panel, lettering and graphics can be made of wood, synthetic wood or metal.
3.
Small blade signs may project over the sidewalk but must be set back at least three feet from the back of curb and have at least ten feet of clearance from grade.
4.
Small blade signs must be double sided and the depth of the sign cannot exceed eight inches. Only one face of the sign will be used to calculate size.
d.
Illumination. Shall comply with subsection 78-6(1)(d) of this Code.
Figure 122-827.15 Example of Small Blade Sign
Figure 122-827.16 Example of Small Projecting Sign
(9)
Vertical projecting signs. A vertical projecting sign is a sign that is attached to and projecting out from a building face or wall more than 12 inches, generally set at a right angle to the building.
a.
Size. The size of a vertical projecting sign cannot exceed 100 square feet in area. Only one face of the sign will be used to calculate size.
b.
Proportion. The proportion of the sign shall be one foot wide for every two and one-half feet tall.
c.
Location.
1.
A vertical projecting sign may overhang the sidewalk but must be located a minimum of three feet from the back of curb. At least ten feet of clearance must be provided between the bottom of the sign and the sidewalk.
2.
Vertical projecting signs can extend above a tenant's lease space with approval of the owner of the building.
d.
Design.
1.
The support structure from which the projecting sign panel is suspended must be decorative and made of metal. The supports must be engineered to withstand local wind loads.
2.
The sign panel, lettering and graphics must be made of wood, synthetic wood or metal.
3.
Vertical projecting signs must be double-sided. The depth of the sign panel may not exceed 15 inches, including the depth of the applied letters or graphics.
4.
The maximum width of the sign shall not exceed six feet.
e.
Illumination. Shall comply with subsection 78-6(1)(d) of this Code.
Figure 122-827.17 Example of a Vertical Projecting Sign
Figure 122-827.18 Example of Vertical Projecting Sign
(10)
Wall signs. A wall sign is a sign affixed to a wall.
a.
Size. The length of a wall sign cannot exceed 75 percent of the storefront or overall leased wall length of the wall on which it is erected.
b.
Location.
1.
Wall signs may not extend more than 12 inches from the face of the building and may not extend above the first floor without a minor adjustment.
2.
Wall signs must be contained horizontally and vertically within a tenant's lease space or storefront.
c.
Illumination. Shall comply with subsection 78-6(1)(d) of this Code.
Figure 122-827.19 Example of a Wall Sign
Figure 122-827.20 Example of Wall Sign
(11)
Window signs. All window signs shall comply with subsection 78-6(3)(a)(4) of this Code.
Figure 122-827.21 Example of Window Sign
Figure 122-827.22 Example of Window Sign
(n)
Allowable sign types. For public rights-of-way and pedestrian areas of developments.
(1)
Directory sign. Project directory signs contain a map and a listing of key destinations within the PDO-2, and surrounding attractions (Village Centre, Old Falls Village, Civic Center, and similar).
a.
Size. The maximum size for a project directory sign is 16 square feet.
b.
Height. Maximum height for a project directory sign shall be seven feet measured from the ground plane.
c.
Location.
1.
Project directory signs may be placed within pedestrian areas provided a four-foot clear area is provided for pedestrians on all sides.
2.
Project directory signs may be place within the public right-of-way subject to having a minimum of four feet clearance area being provided and approval by the village manager or designee.
d.
Advertising. No retail advertising is allowed on project directory signs.
e.
Illumination. The project directory sign may be internally illuminated.
Figure 122-827.23 Example of a Directory Sign
Figure 122-827.24 Example of a Directory Sign
(a)
Intent. Support the creation of convenient and efficient shared parking in order to enable visitors to access a variety of commercial enterprises in a pedestrian-friendly environment that supports an active and vibrant retail environment.
(b)
Automobile parking.
(1)
Off-street parking requirements. Off-street facilities shall be provided for all uses within the PDO-2 and shall meet the requirements of section 122-731.
(2)
Underground parking.
a.
Setback. Off street below-grade parking is permitted to the lot lines but must be designed to allow planting of landscaping.
b.
Vehicle entries to underground parking. Access points to and from underground parking areas shall be located on side streets whenever possible. When exiting into pedestrian areas or major thoroughfares, an ample area for pausing shall be provided. Entries shall be designed to coordinate with the articulation of the building façade.
c.
Pedestrian entries to underground parking. Underground parking facilities shall provide a pedestrian connection from the parking area to street level. This connection may be internal in a building if the parking is private. Public parking shall have a direction connection to the street.
d.
Ventilation of underground parking. Ventilation shall be located in such a manner that it does not adversely affect pedestrians or adjacent uses.
(3)
Shared parking. Shared parking is encouraged within this district. An adjustment to the required number of parking stalls may be provided per the regulations of section 122-734.
(c)
Bicycle parking.
(1)
Goals. Bicycle parking is required in order to encourage the use of bicycles by providing safe and convenient places to park bicycles.
(2)
Required bicycle parking for mixed-use commercial, mixed-use residential and commercial areas.
a.
Number of spaces. Bicycle parking shall be provided based on at least one space for each 20 automobile parking spaces required as part of the base parking requirement in section 122-731 of this Code.
b.
Location.
1.
Required bicycle parking must be located within each block. Bicycle parking may be located in the public right-of-way with the approval of the village manager or designee, or on private property.
2.
On-street bicycle parking shall be located within the band created by street trees and pedestrian streetlights. However, it must be placed in a manner that avoids conflicts with pedestrian and vehicular paths.
Figure 122-828.1 On-Street Bicycle Parking
c.
Covered spaces. If covered spaces for motor vehicles are provided on site, then 50 percent of the bicycle parking shall also be covered.
d.
Rack types and required areas. Rack types shall either match those provided within the public right-of-way or will require approval by the director of community development.
(a)
Intent. It is the intent of this section to provide a standard and consistency of lighting that supports pedestrian activity and promotes safety.
(b)
Lighting standards.
(1)
Street and pedestrian lighting specifications are found in section 90-160 and 90-171 of this Code. Parking lot lighting specifications are found in section 122-640.
a.
Lighting elements shall be incandescent, metal halide, LED or halogen only. No high-intensity discharge (HID) or fluorescent lights (except fluorescent bulbs that screw into standard socket fixtures) may be used on the exterior of buildings.
b.
All lighting shall be focused downward or narrowly focused on its intended target areas.
c.
In parking areas within commercial areas, "shoe box" style lighting fixtures with cut-off luminaries shall be allowed for illumination in the parking field only. The height from grade shall not exceed 25 feet. Cut-off shields and other means shall be used to prevent light from spilling onto adjoining properties or rights-of-way. When a parking area is adjacent to residential uses the lighting located within 25 feet of the property line shall not exceed 16 feet high and shall use proper screening of the lighting to minimize the impact on the residential uses.
(c)
Security lighting.
(1)
Security lighting shall use the lowest possible illumination to effectively allow surveillance.
(2)
The use of sensor technologies, timers or other means to activate lighting during times when it will be needed may be used to conserve energy and provide safety.
(3)
In ordering to direct light downward and minimize the amount of light spill into the dark night sky, all security lighting fixtures shall be full cut-off fixtures as defined by the Illuminating Engineering Society of North America (IESNA).
(4)
Security lighting fixtures shall be shielded and aimed so that illumination is directed to the designated areas.
(d)
Landscape and architectural lighting.
(1)
Location. Landscape and architectural lighting shall be permitted in the following areas:
a.
At entries and/or gateways of the PDO-2.
b.
To highlight interesting or unique architectural elements or focal points as they relate to the overall building design.
c.
To highlight interesting or unique landscape elements or focal points as they relate to the overall landscaping.
d.
Other areas as approved by the architectural control board.
(2)
Landscape and architectural lighting requirements. Landscape and architectural lighting shall be ground-, building-, or lighting pole-mounted with the light source being concealed from direct viewing.
(a)
Intent.
(1)
Provide a pleasing and technically sound landscaped environment.
(2)
Provide for cooling and heat gain during various seasonal changes for pedestrian areas and structures.
(3)
Provide for stormwater management and water quality.
(b)
Plan requirements. Plans shall comply with the requirements of section 122-623.
(c)
Maintenance requirements.
(1)
Shall comply with the requirements of section 122-603.
(2)
The owner(s), ownership group and/or community association shall be responsible for replacement of dead or unacceptable plant material.
(d)
Preservation of topography. Shall comply with section 38-113 of this Code.
(e)
Avoidance of plant monocultures.
(1)
Plant monocultures are essentially environments that have only two or three varieties of main plant materials. Landscaping plans (for a phase, individual property, individual building, etc.) shall not contain more than 25 percent of any one type of species of shrub, evergreen tree, deciduous tree, annual, or perennial.
(f)
Minimum planting size general.
(1)
Minimum sizes.
a.
Shade trees: two-and-one-half-inch minimum caliper.
b.
Evergreen trees: six feet height.
c.
Evergreen and deciduous shrubs: one-gallon pot.
d.
Perennials: four-inch potted material minimum.
e.
Groundcover: three-inch pots or bands.
(g)
Parking lot screening.
(1)
General. Screening shall be provided around the entire perimeter of all parking lots. Screening adjacent to residential uses shall be of a screening style to block headlights and other less desirable uses of parking areas. The incorporation of vegetated stormwater control measures into screening areas is strongly encouraged.
(2)
Screening types. Screening of parking lots may take one of three screening approaches:
a.
Plant screening.
1.
Deciduous trees. One per 35 linear feet.
2.
Evergreen trees. Groupings of three every 100 feet. This requirement may be waived by the village manager or designee if the landscape architect can show a design intent that does not require such plantings but provide appropriate screening.
3.
Shrubs. One per three linear feet. This requirement may be waived by the village manager or designee if the landscape architect can show a design intent that does not require such plantings but provide appropriate screening.
4.
Other plantings. (Perennial flowers) one per one linear foot.
5.
Year-round visual screen for parking areas. Plants shall be layered to affect a visual baffle as they grow together. For example, shade trees and evergreen trees are fronted with lower shrubs and flowering shrubs to create screening from the ground up. Decorative fencing or walls may be used to supplement landscaping as part of vegetated stormwater control areas.
b.
Berm and plant screening.
1.
Berm height and design. The height of the berm shall be between two and one-half and four feet and must have a minimum of a 1:3 slope. Retaining walls on the parking lot side may be used where space is a premium.
2.
Deciduous trees. One per 35 linear feet.
Figure 122-830.1 Example of Plant Screening
Figure 122-830.2 Example of Berm Screening
c.
Landscape wall with supplemental landscaping.
1.
Wall height and design. Landscape walls intended for parking lot screening may be located adjacent to rights-of-way, private streets, and adjoining properties where appropriate.
2.
Deciduous trees. One per 40 linear feet.
3.
Shrubs. Shall be supplement to soften the wall where appropriate.
4.
Other plantings. (Perennial flowers) One per one linear foot, or as specified for vegetated stormwater control measures.
Figure 122-830.3 Example of Landscape Wall Screening
(h)
Internal parking lot landscaping.
(1)
Planting islands.
a.
Quantity.
1.
Surface parking lots containing ten to 50 parking spaces shall provide a minimum of one canopy tree for every ten parking spaces.
2.
Surface parking lots containing more than 50 parking spaces shall provide a minimum of one canopy tree for every 15 parking spaces.
b.
Design. Planting areas for trees within parking rows shall be a minimum of nine feet by 18 feet, protected with curbing, wheel stops or other barrier to prevent cars from damaging the landscaped area.
c.
Plantings.
1.
Planting islands shall be underlain by soil (not base course material) and appropriate media for healthy plant growth and stormwater management, and shall be protected by curbing, wheel stops, bollards, or other protective treatment.
2.
Each island shall contain at least one canopy tree and a combination of groundcover, shrubs and other plantings. Planting islands shall also be designed so as not to interfere with the opening of car doors in adjacent spaces.
3.
Each swale shall contain one canopy tree and vegetation that can withstand dry and wet conditions.
(i)
Plaza and open space landscaping. Landscaping shall be provided within these areas. Minimum requirements are defined by section 122-622. Additional landscaping criteria may be required by the architectural control board on a case-by-case basis.
(j)
Foundation and yard landscaping.
(1)
Multi-family and single-family residential development.
a.
Shade trees. A minimum of one shade or ornamental tree shall be provided in the front yard and a minimum of one shade or ornamental tree shall be provided in the rear yard.
b.
Foundation plantings. Foundation plantings shall be provided at the fronts of all structures and shall return to the sides of the structures a minimum of six feet. Planter boxes may be included with foundation plantings.
c.
Yards. All yards shall have a turf or native planting area, or other formalized garden areas.
d.
Variations. When the architecture of the structures on the site call for a unique landscaping design solution, the architectural control board may approve a different design solution, which is designed by a registered landscape architect.
(2)
Commercial development and developments with commercial uses.
a.
Shade trees. Ornamental and large shade trees shall be required for all green space areas as required by the architectural control board.
b.
Foundation plantings. Foundation plantings shall be required for all greenspace areas as required by the architectural control board. Planter boxes may be included with foundation plantings.
c.
Variations. When the architecture of the structures on the site call for a unique landscaping design solution the architectural control board may approve a different design solution which is designed by a registered landscape architect.
(k)
Irrigation.
(1)
The areas in and around commercial, retail, service and residential developments shall have fully-automatic irrigation systems installed for turf and planting areas when required by the architectural control board.
(2)
Irrigation systems that are for planting beds, turf, and planters shall be maintained in good repair.
(l)
Finish materials.
(1)
Edging. Appropriate edging materials for planting beds shall include a turf edge, poly edging, steel edging and vertical stone curbing.
(2)
Mulch. Hardwood mulch or groundcovers shall be used for all planting beds. Rock, stone, and similar shall not be allowed.
(m)
Installation. Landscaping shall be installed within nine months of occupancy or substantial completion of the building, whichever comes first, weather and appropriate planting seasons permitting.
(a)
Intent. It is the intent that a developer or builder who wishes to develop under this zoning district will be processed in an expedited manner.
(b)
Conceptual review. An applicant may apply for a conceptual review for a project to the village. There are no specifics that are required to be submitted to the village, however, any information that is submitted will be commented on by the village departments. After a project has been reviewed by all village departments, the department of community development shall place the item on the appropriate agenda for discussion. A conceptual review may occur before the community development authority, plan commission, architectural control board, and/or village board.
(c)
Specific plan approval process.
(1)
Application process. Prior to obtaining a building permit, a specific plan must be approved by the Village of Menomonee Falls community development authority and the architectural control board.
(2)
Approval steps.
a.
Step one. Submission of an application containing the following:
1.
A location map of the subject property and its vicinity.
2.
Plan of operation(s).
3.
Development statistics.
4.
Site plan.
5.
Utility plan—Existing and proposed.
6.
Legal description of properties.
7.
Survey.
8.
Grading plan—One-foot contours.
9.
Stormwater management plan.
10.
Erosion control plan.
11.
Building plans.
12.
Building material samples.
13.
Building function and purpose.
14.
Parking plan.
15.
Landscaping plan.
16.
Lighting plan.
17.
Signage program.
18.
Utility plan—Building mounted and ground mounted.
19.
Dumpster plan.
20.
HVAC screening.
21.
Any adjustments or exceptions that are being requested.
22.
Any proposed CSM or subdivision plat that is necessary to implement the development plan.
23.
Value of development.
24.
Application for review (village form) and fee.
25.
Any other information that may be requested by the village.
b.
Step two. Review by village departments.
c.
Step three. Review by the community development authority. The community development authority shall review the application in accordance with intent of the project plans for tax incremental districts no. 6 and no. 8, and approve the plan as submitted, deny the plan, or approve the plan with modifications.
d.
Step four. Review by the architectural control board. The architectural control board shall review the application in accordance with the design elements of the zoning district, and approve the plan as submitted, deny the plan, or approve the plan with modifications.
e.
Step five. Building permit. After the applicant has received approval by the community development authority and architectural control board, the applicant may apply for all applicable building permits or other required permits.
(d)
Minor modification. A minor modification may be authorized allowing the variation of up to 15 percent of any numerical requirement identified within PDO-2.
(1)
Criteria for granting a minor modification.
a.
The director of community development shall consider the following criteria when determining whether to grant a minor modification:
1.
The granting of the adjustment will not be detrimental to the public welfare or injurious to other property or improvements in the neighborhood in which the property is located.
2.
The proposed adjustment will not impair an adequate supply of light and air to adjacent property, or substantially increase the congestion in the public streets, or increase the danger of fire, or endanger the public safety, or substantially diminish or impair property values within the neighborhood.
3.
The granting of the adjustment will not be contrary to the intent of PDO-2.
(2)
Submittal requirements. In addition to the regular submittal requirements, the applicant shall submit written reasons why the requested minor modification should be granted.
(3)
Approval process.
a.
Step one. Submission of an application.
b.
Step two. Review by village departments.
c.
Step three. Review by the director of community development, who shall act to approve or deny the requested minor adjustment. The director of community development may impose conditions and restrictions upon the premises benefited by a minor adjustment to reduce or minimize the injurious effect of such minor modification upon other property in the neighborhood, and to better carry out the general intent of PDO-2.
d.
Step four. Building permit. After the applicant obtains a minor adjustment and submits plans that are compliant with all conditions of the minor adjustment and obtains specific plan approval, the applicant may apply for all applicable building permits.
(e)
Adjustment. An adjustment may be authorized allowing the variation of between 15 percent and 30 percent of a numerical requirement identified within PDO-2, or to allow the adjustment of one type of use to a similar use such as "loft residential" to "townhouse" or "restaurant" to "commercial".
(1)
Criteria for granting an adjustment.
a.
The plan commission shall consider the recommendations of the community development authority and architectural control board, as well as the following criteria when determining whether to grant an adjustment:
1.
The granting of the adjustment will not be detrimental to the public welfare or injurious to other property or improvements in the neighborhood in which the property is located.
2.
The proposed adjustment will not impair an adequate supply of light and air to adjacent property, or substantially increase the congestion in the public streets, or increase the danger of fire, or endanger the public safety, or substantially diminish or impair property values within the neighborhood.
3.
The granting of the adjustment will not be contrary to the intent of PDO-2.
b.
The plan commission may impose conditions and restrictions upon the premises benefited by an adjustment to reduce or minimize the injurious effect of such adjustment upon other property in the neighborhood, and to better carry out the general intent of PDO-2.
(2)
Submittal requirements. In addition to the regular submittal requirements, the applicant shall submit written reasons why the requested adjustment should be granted.
(3)
Approval process.
a.
Step one. Submission of an application.
b.
Step two. Review by village departments.
c.
Step three. Review by the community development authority. The community development authority shall review the application and provide the plan commission with a recommendation to approve, deny, or approve with conditions.
d.
Step four. Review by the architectural control board. The architectural control board shall review the application and provide the plan commission with a recommendation to approve, deny, or approve with conditions.
e.
Step five. Plan commission approval. After the community development authority and architectural control board have made recommendations to the plan commission, the commission shall review and act upon the adjustment and the development. The commission may approve, deny, or approve the adjustment with conditions.
f.
Step six. Building permit. After the applicant obtains an adjustment, submits plans that are compliant with all the conditions of the adjustment, and obtains specific plan approval, the applicant may apply for all applicable building permits.
(f)
Exception. An exception may be authorized allowing a 30 percent or greater variation of any numerical requirements within PDO-2, or to allow the required use to change.
(1)
Criteria for granting an exception.
a.
The village board shall consider the recommendations of the community development authority, architectural control board, and plan commission, as well as the following criteria when determining whether to grant an exception:
1.
The granting of the exception will not be detrimental to the public welfare or injurious to other property or improvements in the neighborhood in which the property is located.
2.
The proposed exception will not impair an adequate supply of light and air to adjacent property, or substantially increase the congestion in the public streets, or increase the danger of fire, or endanger the public safety, or substantially diminish or impair property values within the neighborhood.
b.
The village board may impose conditions and restrictions upon the premises benefited by an exception to reduce or minimize the injurious effect of such adjustment upon other property in the neighborhood, and to better carry out the general intent of PDO-2.
(2)
Submittal requirements. In addition to the regular submittal requirements, the applicant shall submit written reasons why the requested exception should be granted.
(3)
Approval process.
a.
Step one. Submission of an application.
b.
Step two. Review by village departments.
c.
Step three. Review by the community development authority. The community development authority shall review the application and provide the village board with a recommendation to approve, deny, or approve with conditions.
d.
Step four. Review by the architectural control board. The architectural control board shall review the application and provide the village board with a recommendation to approve, deny, or approve with conditions.
e.
Step five. Review by the plan commission. The plan commission shall review the application and provide a recommendation to the village board with a recommendation to approve, deny, or approve with conditions.
f.
Step six. Scheduling of public hearing. After the community development authority, plan commission and architectural control board have made recommendations to the village board, the director of community development or designee shall schedule a public hearing before the village board.
g.
Step seven. Public hearing. The village board shall hold a public hearing upon each plan commission recommendation, giving public notice thereof by publication of a class two notice pursuant to Wis. Stats. ch. 985. Notice of the public hearing shall be mailed to the petitioner and to the clerk of any municipality whose boundaries are within 1,000 feet of any lands included in the petition, and to the owners of all lands lying within 300 feet of any lands included in the petition. The failure to give any notice to the clerk of any municipality whose boundaries are within 1,000 feet of any lands included in the petition or to the owner of any property, except the owner of lands included in the petition, shall not invalidate the action taken by the village board.
h.
Step eight. Village board action. Following such hearing and after careful consideration of the recommendations from the community development authority, architectural control board and plan commission, the village board shall act to approve, deny, or approve the requested exception with conditions.
i.
Step nine. Building permit. After the applicant has obtained an exception, submits plans that have been modified to be compliant with all conditions of the exception, and obtains specific plan approval, the applicant may apply for all applicable building permits.