- Black Creek PUD Overlay District PDO-11
EXHIBIT A
BLACK CREEK PLANNED UNIT DEVELOPMENT OVERLAY DISTRICT
Black Creek PUD Overlay District Legal Description: The boundary of the Black Creek PUD Overlay District includes current Tax ID Parcel #'s: 30-1S-18-14000-001-0000 as described in the following legal description:
LEGAL DESCRIPTION (AS WRITTEN)
Legal Description:
THE NORTHWEST QUARTER OF THE NORTHEAST QUARTER; ALL EAST OF THE COUNTY ROAD OF THE NORTH HALF OF THE NORTHWEST QUARTER; THE NORTH 330 FEET OF THAT PART OF THE SOUTH HALF OF THE NORTHWEST QUARTER LYING EAST OF THE COUNTY ROAD; THE NORTH 330 FEET OF THE SOUTHWEST QUARTER OF THE NORTHEAST QUARTER; THE WEST 330 FEET OF THE NORTHEAST QUARTER OF THE NORTHEAST QUARTER; AND A PARCEL 330 FEET SQUARE IN THE NORTHWEST CORNER OF THE SOUTHEAST QUARTER OF THE NORTHEAST QUARTER, ALL IN SECTION 30, TOWNSHIP 1 SOUTH, RANGE 18 WEST, WALTON COUNTY, FLORIDA
LESS AND EXCEPT
(OFFICIAL RECORDS BOOK 3036, PAGE 2065) PARCEL 1 ON MAP COMMENCE AT THE POINT WHERE THE EASTERLY RIGHT OF WAY LINE OF A COUNTY PAVED ROAD (BLACK CREEK ROAD) INTERSECTIONS WITH THE NORTH LINE OF SECTION 30, TOWNSHIP 1 SOUTH, RANGE 18 WEST, WALTON COUNTY, FLORIDA; THENCE GO SOUTH 34'13'40" EAST, ALONG SAID RIGHT OF WAY LINE, A DISTANCE OF 1797.84 FEET TO THE POINT OF BEGINNING; THENCE DEPARTING SAID EASTERLY RIGHT OF WAY LINE, GO NORTH 90'00'00" EAST, A DISTANCE 191.80 FEET; THENCE GO NORTH 00'17'20" WEST, A DISTANCE OF 97.79 FEET; THENCE GO SOUTH 89'43'34" WEST, A DISTANCE OF 257.00 FEET TO THE AFORESAID EASTERLY RIGHT OF WAY LINE OF BLACK CREEK ROAD; THENCE GO SOUTH 34'13'40" EAST, ALONG SAID RIGHT OF WAY LINE A DISTANCE OF 116.79 FEET TO THE POINT OF BEGINNING. SUBJECT TO A PRIVATE DRIVE ALONG THE SOUTH 15 FEET OF SUBJECT PROPERTY.
LESS AND EXCEPT
(OFFICIAL RECORDS BOOK 2751, PAGE 1225) PARCEL 2 ON MAP COMMENCE AT THE POINT WHERE THE EASTERLY RIGHT-OF-WAY LINE OF A COUNTY PAVED ROAD (BLACK CREEK ROAD) INTERSECTS WITH THE NORTH LINE OF SECTION 30, TOWNSHIP 1 SOUTH, RANGE 18 WEST, WALTON COUNTY, FLORIDA; THENCE GO SOUTH 34'13'40" EAST, ALONG SAID RIGHT-OF-WAY LINE A DISTANCE OF 1797.84 FEET TO THE POINT OF BEGINNING, THENCE DEPARTING SAID EASTERLY RIGHT-OF-WAY LINE GO NORTH 90'00'00" EAST A DISTANCE OF 191.80 FEET; THENCE GO SOUTH 00'17'20" EAST, A DISTANCE OF 158.16 FEET; THENCE GO SOUTH 89'43'34" WEST, A DISTANCE OF 84.73 FEET TO THE AFORESAID EASTERLY RIGHT-OF-WAY LINE OF BLACK CREEK ROAD; THEN GO NORTH 34'13'40" WEST, ALONG SAID RIGHT-OF-WAY LINE A DISTANCE OF 191.78 FEET TO A POINT OF BEGINNING.
LESS AND EXCEPT
(OFFICIAL RECORDS BOOK 2778, PAGE 163) COMMENCE AT A POINT WHERE THE EAST RIGHT OF WAY LINE OF BLACK CREEK ROAD INTERSECTS WITH THE NORTH LINE OF SECTION 30, TOWNSHIP 1 SOUTH, RANGE 18 WEST, WALTON COUNTY, FLORIDA AND RUN SOUTH 34'13'40" EAST, ALONG SAID RIGHT OF WAY LINE 1989.62 FEET; THENCE NORTH 89'43'34" EAST, 84.73 FEET TO THE POINT OF BEGINNING; THENCE NORTH 89'43'34" EAST 23.37 FEET; THENCE NORTH 05'30'21" WEST 257.02 FEET; THENCE SOUTH 89'43'34" WEST TO A POINT LYING NORTH 00'17'20" EAST 255.95 FEET FROM THE POINT OF BEGINNING; THENCE SOUTH 00'17'20" WEST 255.95 FEET TO THE POINT OF BEGINNING.
LESS AND EXCEPT
(OFFICIAL RECORDS BOOK 3077, PAGE 2501) PARCEL 3 ON MAP COMMENCE AT POINT WHERE THE EAST RIGHT OF WAY LINE OF BLACK CREEK ROAD INTERSECTS WITH THE NORTH LINE OF SECTION 30, TOWNSHIP 1 SOUTH, RANGE 18 WEST, WALTON COUNTY, FLORIDA AND RUN SOUTH 34'13'40" EAST ALONG SAID RIGHT OF WAY LINE 1989.62 FEET; THENCE NORTH 89'43'34" EAST, 108.10 FEET TO THE POINT OF BEGINNING; THENCE CONTINUE NORTH 89'43'34" EAST, 146.63 FEET; THENCE NORTH 00'17'20" WEST, 255.95 FEET; THENCE SOUTH 89'43'34" WEST, 170 FEET; THENCE SOUTH 05'30'21" EAST, 257.02 FEET TO THE POINT OF BEGINNING, SUBJECT TO THE RIGHT OF WAY OF A PRIVATE DRIVE ALONG THE SOUTH PROPERTY LINE.
LESS AND EXCEPT
(OFFICIAL RECORDS BOOK 3007, PAGE 2501) PARCEL 4 ON MAP COMMENCE AT A POINT WHERE THE EAST RIGHT OF WAY LINE OF A COUNTY PAVED ROAD (BLACK CREEK BOULEVARD) INTERSECTS WITH THE NORTH LINE OF SECTION 30, TOWNSHIP 1 SOUTH, RANGE 18 WEST, WALTON COUNTY, FLORIDA AND RUN SOUTH 34'13'40" EAST ALONG SAID RIGHT-OF-WAY LINE 1989.62 FEET, THENCE NORTH 89'43'34" EAST 254.73 FEET TO THE POINT OF BEGINNING; THENCE CONTINUE NORTH 89'43'34" EAST 103.93 FEET; THENCE NORTH 00'17'20" WEST 255.95 FEET; THENCE SOUTH 89'43'34" WEST 103.93 FEET, THENCE SOUTH 00'17'20" EAST 255.95 FEET TO THE POINT OF BEGINNING, SUBJECT TO THE RIGHT-OF-WAY OF A PRIVATE DRIVE ALONG THE SOUTH PROPERTY LINE AND SUBJECT TO A RIGHT-OF-WAY ALONG THE WEST 4 FEET OF THE PROPERTY. TOGETHER WITH AND SUBJECT TO A 30.00 FOOT PERPETUAL INGRESS AND EGRESS EASEMENT BEGIN DESCRIBED AS 15.00 FEET TO THE LEFT AND 15.00 FEET TO THE RIGHT OF THE FOLLOWING CENTERLINE COURSES; COMMENCE AT A POINT WHERE THE EAST RIGHT OF WAY LINE OF A COUNTY PAVED ROAD (BLACK CREEK BOULEVARD) INTERSECTS WITH THE NORTH LINE OF SECTION 30, TOWNSHIP 1 SOUTH, RANGE 18 WEST, WALTON COUNTY, FLORIDA AND RUN SOUTH CENTERLINE 443.76 FEET TO AN EXISTING UNMARKED CONCRETE MONUMENT TO TERMINUS OF THE EASEMENT, LESS & EXCEPT THE SOUTH 15.00 FEET OF LANDS BEING DESCRIBED 2751, PAGE 1225 (CYNTHIA DAWN DILLINGHAM) ALL IN SECTION 30, TOWNSHIP 1 SOUTH, RANGE 18 WEST, WALTON COUNTY, FLORIDA.
LESS AND EXCEPT
(OFFICIAL RECORDS BOOK 2803, PAGE 1523) PARCEL 5 ON MAP COMMENCE AT A POINT WHERE THE EAST RIGHT OF WAY LINE OF A COUNTY ROAD (BLACK CREEK ROAD) INTERSECTS WITH THE NORTH LINE OF SECTION 30, TOWNSHIP 1 SOUTH, RANGE 18 WEST, WALTON COUNTY, FLORIDA. AND RUN SOUTH 34'13'40" EAST, ALONG SAID RIGHT OF WAY LINE, 1989.62 FEET; THENCE NORTH 89'43'34" EAST 358.66 FEET TO THE POINT OF BEGINNING (P.O.B); THENCE CONTINUE NORTH 89'43'34" EAST, 85.10 FEET; THENCE NORTH 00'17'20" WEST 255.95 FEET; THENCE SOUTH 89'43'34" WEST, 85.10 FEET; THENCE SOUTH 00'17'20" EAST, 255.95 FEET TO THE POINT OF BEGINNING (P.O.B). SUBJECT TO THE RIGHT-OF-WAY LINE OF A PRIVATE DRIVE ALONG THE SOUTH PROPERTY LINE.
LESS AND EXCEPT
PARCEL 6 (OFFICIAL RECORDS BOOK 3049, PAGE 4766) PARCEL 6 ON MAP COMMENCE AT THE INTERSECTION OF THE NORTH LINE OF SECTION 30, TOWNSHIP 1 SOUTH, RANGE 18 WEST AND THE EAST RIGHT-OF-WAY OF A COUNTY PAVED ROAD (66 FOOT RIGHT-OF-WAY); THENCE SOUTH 34'13'40" EAST ALONG SAID EAST RIGHT-OF-WAY OF A COUNTY ROAD, 1989.62 FEET TO A CONCRETE MONUMENT; THENCE NORTH 89'43'34" EAST, 444.0 FEET TO THE POINT OF BEGINNING; THENCE NORTH 00'16'26" WEST 256.00 FEET; THENCE NORTH 89'13'40" EAST 256.00 FEET; THENCE SOUTH 00'16'26" EAST 256.00 FEET; THENCE SOUTH 89'13'40" WEST 256.00 FEET TO THE POINT OF BEGINNING. TOGETHER WITH A 15.00 FOOT INGRESS AND EGRESS EASEMENT DESCRIBED AS FOLLOWS: BEGINNING AT THE POINT OF BEGINNING OF THE ABOVE DESCRIBED PARCEL AND GOING NORTH 00'16'26" WEST 15.00 FEET; THENCE SOUTH 89'43'34" WEST 454.10 FEET TO THE EAST RIGHT-OF-WAY OF A COUNTY PRIVATE ROAD (66.0 FOOT RIGHT-OF-WAY); THENCE SOUTH 34'10'40" EAST ALONG SAID RIGHT-OF-WAY, 18.08 FEET; THENCE NORTH 89'43'34" EAST 444.0 FEET TO THE POINT OF BEGINNING.
LESS AND EXCEPT
OFFICIAL RECORDS BOOK 3125, PAGE 421) PARCEL 8 ON MAP A PART OF THE NORTHWEST QUARTER OF SECTION 30, TOWNSHIP 1 SOUTH, RANGE 18 WEST OF THE TALLAHASSEE MERIDIAN, EAST OF BLACK CREEK BOULEVARD, WALTON COUNTY FLORIDA, DESCRIBED AS: COMMENCE AT THE NORTHWEST CORNER OF SAID SECTION 30, MARKED BY A 4" CONCRETE MONUMENT INSCRIBED (A.C.C.); THENCE SOUTH 88'31'00" EAST ALONG THE NORTH LINE OF NORTHWEST QUARTER A DISTANCE OF 803.12 FEET TO A POINT ON THE EAST RIGHT OF WAY LINE OF BLACK CREEK BOULEVARD, A 66' WIDE RIGHT OF WAY AND THE POINT OF BEGINNING, THENCE CONTINUE SOUTH 88'31'00" EAST ALONG SAID NORTH LINE A DISTANCE OF 524.43 FEET TO THE NORTHEAST CORNER OF THE NORTHWEST QUARTER OF THE NORTHWEST QUARTER AS MARKED BY A 4" CONCRETE MONUMENT; THENCE SOUTH 88'32'47" EAST ALONG THE NORTH LINE OF THE NORTHEAST QUARTER OF THE NORTHWEST QUARTER OF SECTION 30, A DISTANCE OF 400.17 FEET, THENCE DEPART NORTH LINE AND PROCEED SOUTH 01'24'49" WEST A DISTANCE OF 603.71 FEET; THENCE NORTH 88'32'47" WEST A DISTANCE OF 518.58 FEET TO A POINT OF THE EAST RIGHT OF WAY LINE OF BLACK CREEK BOULEVARD THENCE NORTH 32'29'04" WEST ALONG EAST LINE A DISTANCE OF 728.00 FEET TO THE POINT OF BEGINNING, CONTAINS 10 ACRES, 435,647 FEET.
LESS AND EXCEPT
(OFFICIAL RECORDS BOOK 3125, PAGE 424) PARCEL 7 ON MAP A PART OF THE NORTHEAST QUARTER OF SECTION 30, TOWNSHIP 1 SOUTH, RANGE 18 WEST OF THE TALLAHASSEE MERIDIAN, NORTH OF JOYCE ROAD, WALTON COUNTY, FLORIDA DESCRIBED AS: COMMENCE AT THE NORTHWEST CORNER OF SAID SECTION 30, MARKED BY A 4" CONCRETE MONUMENT INSCRIBED (A.C.C.) THENCE SOUTH 88'31'00" EAST ALONG NORTH LINE OF NORTHWEST QUARTER A DISTANCE OF 803.12 FEET TO A POINT ON THE EAST RIGHT OF WAY LINE OF BLACK CREEK BOULEVARD, A 66 FOOT WIDE RIGHT OF WAY, THENCE SOUTH 32'29'04" EAST ALONG EAST RIGHT OF WAY A DISTANCE OF 1990.48 FEET TO A 5/8TH IRON ROD MARKING THE CENTERLINE OF JOYCE ROAD, A GRADED DIRT ROAD; THENCE PROCEED SOUTH 88'30'15" EAST
ALONG CENTERLINE OF JOYCE ROAD 699.67 FEET TO A CAPPED IRON ROD LB #7350 MARKING THE SOUTHEAST CORNER OF THAT PARCEL DESCRIBED IN OFFICIAL RECORDS BOOK 3049, PAGE 4766 PUBLIC RECORDS OF WALTON COUNTY AND BEING THE POINT OF BEGINNING; THENCE PROCEED NORTH 01'26'06" EAST ALONG THE EAST LINE OF SAID PARCEL, A DISTANCE 256.00 FEET TO A CAPPED IRON ROD LB #3642; THENCE NORTH 88'30'15" WEST ALONG NORTH LINE OF SAID PARCEL A DISTANCE OF 206.50 FEET; THENCE DEPART SAID NORTH LINE AND PROCEED NORTH 01'26'06" WEST A DISTANCE OF 682.92 FEET; THENCE SOUTH 88'30'15" EAST A DISTANCE OF 521.50 FEET; THENCE SOUTH 01'26'06" EAST A DISTANCE OF 938.92 FEET; THENCE NORTH 88'30'15" WEST A DISTANCE OF 315.00 FEET TO THE POINT OF BEGINNING, CONTAINS 10.02 ACRES, 436.471 SQUARE FEET TOGETHER WITH AND SUBJECT TO A 30.00 FOOT PERPETUAL INGRESS AND EGRESS EASEMENT BEING DESCRIBED AS 15.00 FEET NORTH AND SOUTH OF THE FOLLOWING CENTERLINE COURSES: COMMENCE AT POINT WHERE THE EAST RIGHT-OF-WAY OF A COUNTY PAVED ROAD (BLACK CREEK BOULEVARD) INTERSECTS WITH THE NORTH LINE OF SECTION 30, TOWNSHIP 1 SOUTH, RANGE 18 WEST, WALTON COUNTY, FLORIDA AND RUN SOUTH 32'29'04" EAST ALONG SAID RIGHT-OF-WAY LINE 1990.48 FEET TO AN EXISTING IRON ROD BEING THE CENTERLINE OF A PRIVATE ROAD KNOWN AS JOYCE ROAD AND THE POINT OF BEGINNING, THENCE SOUTH 88'30'15' EAST ALONG SAID CENTERLINE 981.67 FEET TO A 5/8" IRON ROD TO TERMINUS OF THIS EASEMENT.
EXHIBIT B
Conditions of Approval—Applied by the BOCC
1)
The Detailed PUD shall be reviewed as a Major Development.
2)
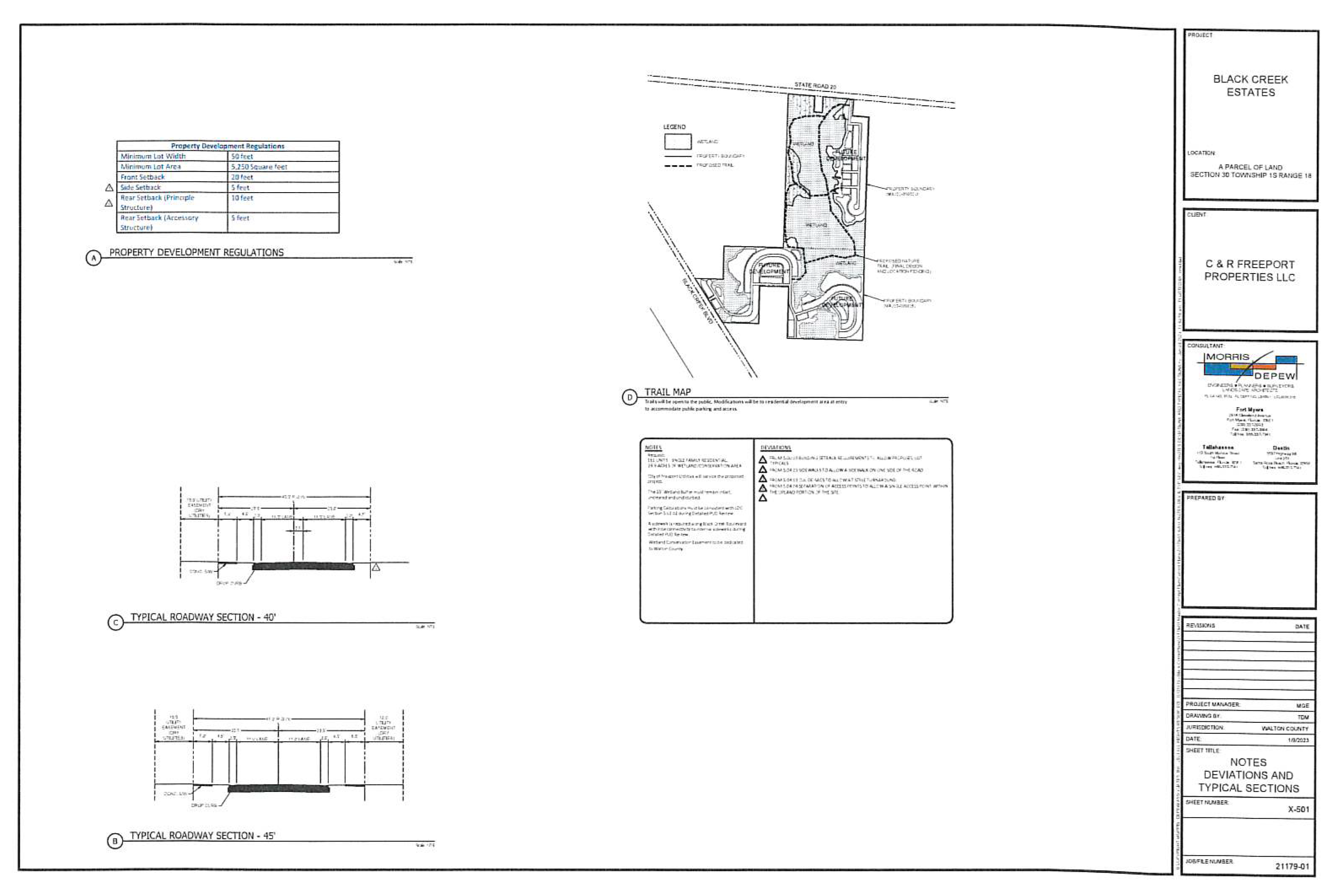
The sidewalk shall not be bought out. However, those portions of the internal sidewalk that were part of the sidewalk buyout request may be placed within the Black Creek Boulevard right-of-way. The owner shall work with the Planning and Development Services and Public Works Departments to determine the most appropriate location(s) for the proposed sidewalk(s).
EXHIBIT C
Black Creek Conceptual PUD Master Plan:
(Ord. No. 2023-07, § I(Exhs. A—C), 3-13-23)
- Black Creek PUD Overlay District PDO-11
EXHIBIT A
BLACK CREEK PLANNED UNIT DEVELOPMENT OVERLAY DISTRICT
Black Creek PUD Overlay District Legal Description: The boundary of the Black Creek PUD Overlay District includes current Tax ID Parcel #'s: 30-1S-18-14000-001-0000 as described in the following legal description:
LEGAL DESCRIPTION (AS WRITTEN)
Legal Description:
THE NORTHWEST QUARTER OF THE NORTHEAST QUARTER; ALL EAST OF THE COUNTY ROAD OF THE NORTH HALF OF THE NORTHWEST QUARTER; THE NORTH 330 FEET OF THAT PART OF THE SOUTH HALF OF THE NORTHWEST QUARTER LYING EAST OF THE COUNTY ROAD; THE NORTH 330 FEET OF THE SOUTHWEST QUARTER OF THE NORTHEAST QUARTER; THE WEST 330 FEET OF THE NORTHEAST QUARTER OF THE NORTHEAST QUARTER; AND A PARCEL 330 FEET SQUARE IN THE NORTHWEST CORNER OF THE SOUTHEAST QUARTER OF THE NORTHEAST QUARTER, ALL IN SECTION 30, TOWNSHIP 1 SOUTH, RANGE 18 WEST, WALTON COUNTY, FLORIDA
LESS AND EXCEPT
(OFFICIAL RECORDS BOOK 3036, PAGE 2065) PARCEL 1 ON MAP COMMENCE AT THE POINT WHERE THE EASTERLY RIGHT OF WAY LINE OF A COUNTY PAVED ROAD (BLACK CREEK ROAD) INTERSECTIONS WITH THE NORTH LINE OF SECTION 30, TOWNSHIP 1 SOUTH, RANGE 18 WEST, WALTON COUNTY, FLORIDA; THENCE GO SOUTH 34'13'40" EAST, ALONG SAID RIGHT OF WAY LINE, A DISTANCE OF 1797.84 FEET TO THE POINT OF BEGINNING; THENCE DEPARTING SAID EASTERLY RIGHT OF WAY LINE, GO NORTH 90'00'00" EAST, A DISTANCE 191.80 FEET; THENCE GO NORTH 00'17'20" WEST, A DISTANCE OF 97.79 FEET; THENCE GO SOUTH 89'43'34" WEST, A DISTANCE OF 257.00 FEET TO THE AFORESAID EASTERLY RIGHT OF WAY LINE OF BLACK CREEK ROAD; THENCE GO SOUTH 34'13'40" EAST, ALONG SAID RIGHT OF WAY LINE A DISTANCE OF 116.79 FEET TO THE POINT OF BEGINNING. SUBJECT TO A PRIVATE DRIVE ALONG THE SOUTH 15 FEET OF SUBJECT PROPERTY.
LESS AND EXCEPT
(OFFICIAL RECORDS BOOK 2751, PAGE 1225) PARCEL 2 ON MAP COMMENCE AT THE POINT WHERE THE EASTERLY RIGHT-OF-WAY LINE OF A COUNTY PAVED ROAD (BLACK CREEK ROAD) INTERSECTS WITH THE NORTH LINE OF SECTION 30, TOWNSHIP 1 SOUTH, RANGE 18 WEST, WALTON COUNTY, FLORIDA; THENCE GO SOUTH 34'13'40" EAST, ALONG SAID RIGHT-OF-WAY LINE A DISTANCE OF 1797.84 FEET TO THE POINT OF BEGINNING, THENCE DEPARTING SAID EASTERLY RIGHT-OF-WAY LINE GO NORTH 90'00'00" EAST A DISTANCE OF 191.80 FEET; THENCE GO SOUTH 00'17'20" EAST, A DISTANCE OF 158.16 FEET; THENCE GO SOUTH 89'43'34" WEST, A DISTANCE OF 84.73 FEET TO THE AFORESAID EASTERLY RIGHT-OF-WAY LINE OF BLACK CREEK ROAD; THEN GO NORTH 34'13'40" WEST, ALONG SAID RIGHT-OF-WAY LINE A DISTANCE OF 191.78 FEET TO A POINT OF BEGINNING.
LESS AND EXCEPT
(OFFICIAL RECORDS BOOK 2778, PAGE 163) COMMENCE AT A POINT WHERE THE EAST RIGHT OF WAY LINE OF BLACK CREEK ROAD INTERSECTS WITH THE NORTH LINE OF SECTION 30, TOWNSHIP 1 SOUTH, RANGE 18 WEST, WALTON COUNTY, FLORIDA AND RUN SOUTH 34'13'40" EAST, ALONG SAID RIGHT OF WAY LINE 1989.62 FEET; THENCE NORTH 89'43'34" EAST, 84.73 FEET TO THE POINT OF BEGINNING; THENCE NORTH 89'43'34" EAST 23.37 FEET; THENCE NORTH 05'30'21" WEST 257.02 FEET; THENCE SOUTH 89'43'34" WEST TO A POINT LYING NORTH 00'17'20" EAST 255.95 FEET FROM THE POINT OF BEGINNING; THENCE SOUTH 00'17'20" WEST 255.95 FEET TO THE POINT OF BEGINNING.
LESS AND EXCEPT
(OFFICIAL RECORDS BOOK 3077, PAGE 2501) PARCEL 3 ON MAP COMMENCE AT POINT WHERE THE EAST RIGHT OF WAY LINE OF BLACK CREEK ROAD INTERSECTS WITH THE NORTH LINE OF SECTION 30, TOWNSHIP 1 SOUTH, RANGE 18 WEST, WALTON COUNTY, FLORIDA AND RUN SOUTH 34'13'40" EAST ALONG SAID RIGHT OF WAY LINE 1989.62 FEET; THENCE NORTH 89'43'34" EAST, 108.10 FEET TO THE POINT OF BEGINNING; THENCE CONTINUE NORTH 89'43'34" EAST, 146.63 FEET; THENCE NORTH 00'17'20" WEST, 255.95 FEET; THENCE SOUTH 89'43'34" WEST, 170 FEET; THENCE SOUTH 05'30'21" EAST, 257.02 FEET TO THE POINT OF BEGINNING, SUBJECT TO THE RIGHT OF WAY OF A PRIVATE DRIVE ALONG THE SOUTH PROPERTY LINE.
LESS AND EXCEPT
(OFFICIAL RECORDS BOOK 3007, PAGE 2501) PARCEL 4 ON MAP COMMENCE AT A POINT WHERE THE EAST RIGHT OF WAY LINE OF A COUNTY PAVED ROAD (BLACK CREEK BOULEVARD) INTERSECTS WITH THE NORTH LINE OF SECTION 30, TOWNSHIP 1 SOUTH, RANGE 18 WEST, WALTON COUNTY, FLORIDA AND RUN SOUTH 34'13'40" EAST ALONG SAID RIGHT-OF-WAY LINE 1989.62 FEET, THENCE NORTH 89'43'34" EAST 254.73 FEET TO THE POINT OF BEGINNING; THENCE CONTINUE NORTH 89'43'34" EAST 103.93 FEET; THENCE NORTH 00'17'20" WEST 255.95 FEET; THENCE SOUTH 89'43'34" WEST 103.93 FEET, THENCE SOUTH 00'17'20" EAST 255.95 FEET TO THE POINT OF BEGINNING, SUBJECT TO THE RIGHT-OF-WAY OF A PRIVATE DRIVE ALONG THE SOUTH PROPERTY LINE AND SUBJECT TO A RIGHT-OF-WAY ALONG THE WEST 4 FEET OF THE PROPERTY. TOGETHER WITH AND SUBJECT TO A 30.00 FOOT PERPETUAL INGRESS AND EGRESS EASEMENT BEGIN DESCRIBED AS 15.00 FEET TO THE LEFT AND 15.00 FEET TO THE RIGHT OF THE FOLLOWING CENTERLINE COURSES; COMMENCE AT A POINT WHERE THE EAST RIGHT OF WAY LINE OF A COUNTY PAVED ROAD (BLACK CREEK BOULEVARD) INTERSECTS WITH THE NORTH LINE OF SECTION 30, TOWNSHIP 1 SOUTH, RANGE 18 WEST, WALTON COUNTY, FLORIDA AND RUN SOUTH CENTERLINE 443.76 FEET TO AN EXISTING UNMARKED CONCRETE MONUMENT TO TERMINUS OF THE EASEMENT, LESS & EXCEPT THE SOUTH 15.00 FEET OF LANDS BEING DESCRIBED 2751, PAGE 1225 (CYNTHIA DAWN DILLINGHAM) ALL IN SECTION 30, TOWNSHIP 1 SOUTH, RANGE 18 WEST, WALTON COUNTY, FLORIDA.
LESS AND EXCEPT
(OFFICIAL RECORDS BOOK 2803, PAGE 1523) PARCEL 5 ON MAP COMMENCE AT A POINT WHERE THE EAST RIGHT OF WAY LINE OF A COUNTY ROAD (BLACK CREEK ROAD) INTERSECTS WITH THE NORTH LINE OF SECTION 30, TOWNSHIP 1 SOUTH, RANGE 18 WEST, WALTON COUNTY, FLORIDA. AND RUN SOUTH 34'13'40" EAST, ALONG SAID RIGHT OF WAY LINE, 1989.62 FEET; THENCE NORTH 89'43'34" EAST 358.66 FEET TO THE POINT OF BEGINNING (P.O.B); THENCE CONTINUE NORTH 89'43'34" EAST, 85.10 FEET; THENCE NORTH 00'17'20" WEST 255.95 FEET; THENCE SOUTH 89'43'34" WEST, 85.10 FEET; THENCE SOUTH 00'17'20" EAST, 255.95 FEET TO THE POINT OF BEGINNING (P.O.B). SUBJECT TO THE RIGHT-OF-WAY LINE OF A PRIVATE DRIVE ALONG THE SOUTH PROPERTY LINE.
LESS AND EXCEPT
PARCEL 6 (OFFICIAL RECORDS BOOK 3049, PAGE 4766) PARCEL 6 ON MAP COMMENCE AT THE INTERSECTION OF THE NORTH LINE OF SECTION 30, TOWNSHIP 1 SOUTH, RANGE 18 WEST AND THE EAST RIGHT-OF-WAY OF A COUNTY PAVED ROAD (66 FOOT RIGHT-OF-WAY); THENCE SOUTH 34'13'40" EAST ALONG SAID EAST RIGHT-OF-WAY OF A COUNTY ROAD, 1989.62 FEET TO A CONCRETE MONUMENT; THENCE NORTH 89'43'34" EAST, 444.0 FEET TO THE POINT OF BEGINNING; THENCE NORTH 00'16'26" WEST 256.00 FEET; THENCE NORTH 89'13'40" EAST 256.00 FEET; THENCE SOUTH 00'16'26" EAST 256.00 FEET; THENCE SOUTH 89'13'40" WEST 256.00 FEET TO THE POINT OF BEGINNING. TOGETHER WITH A 15.00 FOOT INGRESS AND EGRESS EASEMENT DESCRIBED AS FOLLOWS: BEGINNING AT THE POINT OF BEGINNING OF THE ABOVE DESCRIBED PARCEL AND GOING NORTH 00'16'26" WEST 15.00 FEET; THENCE SOUTH 89'43'34" WEST 454.10 FEET TO THE EAST RIGHT-OF-WAY OF A COUNTY PRIVATE ROAD (66.0 FOOT RIGHT-OF-WAY); THENCE SOUTH 34'10'40" EAST ALONG SAID RIGHT-OF-WAY, 18.08 FEET; THENCE NORTH 89'43'34" EAST 444.0 FEET TO THE POINT OF BEGINNING.
LESS AND EXCEPT
OFFICIAL RECORDS BOOK 3125, PAGE 421) PARCEL 8 ON MAP A PART OF THE NORTHWEST QUARTER OF SECTION 30, TOWNSHIP 1 SOUTH, RANGE 18 WEST OF THE TALLAHASSEE MERIDIAN, EAST OF BLACK CREEK BOULEVARD, WALTON COUNTY FLORIDA, DESCRIBED AS: COMMENCE AT THE NORTHWEST CORNER OF SAID SECTION 30, MARKED BY A 4" CONCRETE MONUMENT INSCRIBED (A.C.C.); THENCE SOUTH 88'31'00" EAST ALONG THE NORTH LINE OF NORTHWEST QUARTER A DISTANCE OF 803.12 FEET TO A POINT ON THE EAST RIGHT OF WAY LINE OF BLACK CREEK BOULEVARD, A 66' WIDE RIGHT OF WAY AND THE POINT OF BEGINNING, THENCE CONTINUE SOUTH 88'31'00" EAST ALONG SAID NORTH LINE A DISTANCE OF 524.43 FEET TO THE NORTHEAST CORNER OF THE NORTHWEST QUARTER OF THE NORTHWEST QUARTER AS MARKED BY A 4" CONCRETE MONUMENT; THENCE SOUTH 88'32'47" EAST ALONG THE NORTH LINE OF THE NORTHEAST QUARTER OF THE NORTHWEST QUARTER OF SECTION 30, A DISTANCE OF 400.17 FEET, THENCE DEPART NORTH LINE AND PROCEED SOUTH 01'24'49" WEST A DISTANCE OF 603.71 FEET; THENCE NORTH 88'32'47" WEST A DISTANCE OF 518.58 FEET TO A POINT OF THE EAST RIGHT OF WAY LINE OF BLACK CREEK BOULEVARD THENCE NORTH 32'29'04" WEST ALONG EAST LINE A DISTANCE OF 728.00 FEET TO THE POINT OF BEGINNING, CONTAINS 10 ACRES, 435,647 FEET.
LESS AND EXCEPT
(OFFICIAL RECORDS BOOK 3125, PAGE 424) PARCEL 7 ON MAP A PART OF THE NORTHEAST QUARTER OF SECTION 30, TOWNSHIP 1 SOUTH, RANGE 18 WEST OF THE TALLAHASSEE MERIDIAN, NORTH OF JOYCE ROAD, WALTON COUNTY, FLORIDA DESCRIBED AS: COMMENCE AT THE NORTHWEST CORNER OF SAID SECTION 30, MARKED BY A 4" CONCRETE MONUMENT INSCRIBED (A.C.C.) THENCE SOUTH 88'31'00" EAST ALONG NORTH LINE OF NORTHWEST QUARTER A DISTANCE OF 803.12 FEET TO A POINT ON THE EAST RIGHT OF WAY LINE OF BLACK CREEK BOULEVARD, A 66 FOOT WIDE RIGHT OF WAY, THENCE SOUTH 32'29'04" EAST ALONG EAST RIGHT OF WAY A DISTANCE OF 1990.48 FEET TO A 5/8TH IRON ROD MARKING THE CENTERLINE OF JOYCE ROAD, A GRADED DIRT ROAD; THENCE PROCEED SOUTH 88'30'15" EAST
ALONG CENTERLINE OF JOYCE ROAD 699.67 FEET TO A CAPPED IRON ROD LB #7350 MARKING THE SOUTHEAST CORNER OF THAT PARCEL DESCRIBED IN OFFICIAL RECORDS BOOK 3049, PAGE 4766 PUBLIC RECORDS OF WALTON COUNTY AND BEING THE POINT OF BEGINNING; THENCE PROCEED NORTH 01'26'06" EAST ALONG THE EAST LINE OF SAID PARCEL, A DISTANCE 256.00 FEET TO A CAPPED IRON ROD LB #3642; THENCE NORTH 88'30'15" WEST ALONG NORTH LINE OF SAID PARCEL A DISTANCE OF 206.50 FEET; THENCE DEPART SAID NORTH LINE AND PROCEED NORTH 01'26'06" WEST A DISTANCE OF 682.92 FEET; THENCE SOUTH 88'30'15" EAST A DISTANCE OF 521.50 FEET; THENCE SOUTH 01'26'06" EAST A DISTANCE OF 938.92 FEET; THENCE NORTH 88'30'15" WEST A DISTANCE OF 315.00 FEET TO THE POINT OF BEGINNING, CONTAINS 10.02 ACRES, 436.471 SQUARE FEET TOGETHER WITH AND SUBJECT TO A 30.00 FOOT PERPETUAL INGRESS AND EGRESS EASEMENT BEING DESCRIBED AS 15.00 FEET NORTH AND SOUTH OF THE FOLLOWING CENTERLINE COURSES: COMMENCE AT POINT WHERE THE EAST RIGHT-OF-WAY OF A COUNTY PAVED ROAD (BLACK CREEK BOULEVARD) INTERSECTS WITH THE NORTH LINE OF SECTION 30, TOWNSHIP 1 SOUTH, RANGE 18 WEST, WALTON COUNTY, FLORIDA AND RUN SOUTH 32'29'04" EAST ALONG SAID RIGHT-OF-WAY LINE 1990.48 FEET TO AN EXISTING IRON ROD BEING THE CENTERLINE OF A PRIVATE ROAD KNOWN AS JOYCE ROAD AND THE POINT OF BEGINNING, THENCE SOUTH 88'30'15' EAST ALONG SAID CENTERLINE 981.67 FEET TO A 5/8" IRON ROD TO TERMINUS OF THIS EASEMENT.
EXHIBIT B
Conditions of Approval—Applied by the BOCC
1)
The Detailed PUD shall be reviewed as a Major Development.
2)
The sidewalk shall not be bought out. However, those portions of the internal sidewalk that were part of the sidewalk buyout request may be placed within the Black Creek Boulevard right-of-way. The owner shall work with the Planning and Development Services and Public Works Departments to determine the most appropriate location(s) for the proposed sidewalk(s).
EXHIBIT C
Black Creek Conceptual PUD Master Plan:
(Ord. No. 2023-07, § I(Exhs. A—C), 3-13-23)