LAND USE REGULATIONS
The purpose of this article is to indicate which land uses may locate in each zoning district and under what requirements; and which land uses may not locate therein. A further distinction is made for land uses which may locate in a given district only upon obtaining a conditional or temporary use permit to do so. Finally, certain land uses may locate in a given district as a matter of right upon compliance with special regulations for such a land use.
(Ord. No. 0-6-09, 6-23-2009)
The land uses listed in article I are specifically designated and refer to the detailed listing of land uses contained in section 78-206 (Detailed land use descriptions and regulations).
(1)
Land uses permitted by right: Land uses listed as permitted by right are permitted per the general land use requirement of this chapter (section 78-205); per the general requirements of the specific zoning district in which they are located; per any additional requirements imposed by applicable overlay zoning districts as designated on the official zoning map; per the general requirements of this chapter including section 78-908; and per any and all other applicable city, county, state, and federal regulations.
(2)
Land uses permitted as a conditional use: Land uses listed as permitted as a conditional use are permitted subject to all the requirements applicable to uses permitted by right as listed in subsection (1), above, plus any additional requirements applicable to that particular land use as contained in section 78-206 (Detailed land use descriptions and regulations), including any additional requirements imposed as part of the conditional use process. Each application for, and instance of, a conditional use shall be considered a unique situation and shall not be construed as precedence for similar requests. (See also section 78-905 for Conditional use procedures).
(3)
Land uses permitted as an accessory use: Land uses permitted as an accessory use are permitted subject to all the requirements applicable to uses permitted by right as listed in subsection (1), above, plus any additional requirements applicable to that particular land use as contained in section 78-206 (Detailed land use descriptions and regulations).
(4)
Land uses permitted as a temporary use: Land uses listed as permitted as a temporary use are permitted subject to all the requirements applicable to uses permitted by right as listed in subsection (1), above, plus any additional requirements applicable to that particular land use as contained in section 78-206(9) (Detailed land use descriptions and regulations). (See also section 78-206.)
For land uses which are not listed in a specific zoning district in section 78-105, see section 78-206.
Even if a land use may be indicated as permitted by right or permitted as a conditional use in a particular district, such a land use may not necessarily be permitted or permissible on any or every property in such district. No land use is permitted or permissible on a property unless it can be located or implemented on it in full compliance with all of the standards and regulations of this chapter applicable to the specific land use and property in question, or unless an appropriate variance has been granted pursuant to section 78-910.
(Ord. No. 0-6-09, 6-23-2009)
See the Land Use Table Appendix C, which is non-regulatory, for a summary of the treatment of all land uses regulated by this article.
(Ord. No. 0-6-09, 6-23-2009; Ord. No. 0-4-2011, § 12, 5-10-2011)
All uses of land initiated within the jurisdiction of this chapter on, or following, the effective date of this chapter shall comply with all of the provisions of this chapter. Specifically:
(1)
Land use regulations and requirements: All uses of land shall comply with all the regulations and requirements of this chapter, pertaining to the types of uses to which land is put within particular zoning districts. Such regulations and requirements address both general and specific regulations which land uses shall adhere to; and which are directly related to the protection of the health, safety and general welfare of the residents of the City of Stoughton and its environs.
(2)
Density and intensity regulations and requirements: All development of land shall comply with all the regulations and requirements of this chapter, pertaining to the maximum permitted density (for residential land uses) and intensity (for nonresidential land uses) of land uses. Such regulations and requirements address issues such as floor area ratios (FARs), green space ratios (GSRs), and landscape surface ratios (LSRs); which are directly related to, and are a critical component of, density and intensity and the protection of the health, safety, and general welfare of the residents of the City of Stoughton and its environs.
(3)
Bulk regulations and requirements: All development of land shall comply with all the regulations and requirements of this chapter, pertaining to the maximum permitted bulk of structures and the location of structures on a lot. Such regulations and requirements address issues such as height, setbacks from property lines and rights of way, and minimum separation between structures; which are directly related to, and a critical component of, the effective bulk of a structure and the protection of the health, safety, and general welfare of the residents of the City of Stoughton and its environs.
(4)
Natural resources and green space regulations and requirements: All land use and/or development of land shall comply with all the regulations and requirements of this chapter, pertaining to the protection of sensitive natural resources and required green space areas. Such regulations and requirements address issues such as absolute protection, partial protection, and mitigation; which are directly related to, and a critical component of, the protection of natural resources and the protection of the health, safety, and general welfare of the residents of the City of Stoughton and its environs.
(5)
Landscaping and bufferyards regulations and requirements: All development of land shall comply with all the regulations and requirements of this chapter, pertaining to the provision of landscaping and bufferyards. Such regulations and requirements address issues such as minimum required landscaping of developed land, and minimum required provision of bufferyards between adjoining zoning districts and/or development options; which are directly related to, and a critical component of, the effective bulk of a structure and the protection of the health, safety, and general welfare of the residents of the City of Stoughton and its environs.
(6)
Performance standards and requirements: All development of land shall comply with all the regulations and requirements of this chapter, pertaining to the provision of appropriate access, parking, loading, storage, and lighting facilities. Such regulations and requirements address issues such as maximum permitted access points, minimum required parking spaces, the screening of storage areas, and maximum permitted intensity of lighting, as well as defining acceptable levels of potential nuisances such as noise, vibration, odors, heat, glare and smoke; which are directly related to, and a critical component of, the protection of the health, safety, and general welfare of the residents of the City of Stoughton and its environs.
(7)
Signage regulations and requirements: All land use and/or development of land shall comply with all the regulations and requirements of article VIII, pertaining to the type and amount of signage permitted on property. Such regulations and restrictions address issues such as the maximum area of permitted signage and the number and types of permitted signage; which are directly related to, and a critical component of, the protection of the health, safety, and general welfare of the residents of the City of Stoughton and its environs.
(8)
Procedural regulations and requirements: All land use and/or development of land shall comply with all the regulations and requirements of article IX, pertaining to the procedures necessary to secure review and approval of land use and/or development. Such regulations and restrictions address both procedural and technical requirements; and are directly related to, and a critical component of, the protection of the health, safety, and general welfare of the residents of the City of Stoughton and its environs. At a minimum, all development shall be subject to the requirements of section 78-908.
(9)
Number of buildings per lot. In the RH, SR-3, SR-4, SR-5 and SR-6 Districts, only one principal building shall be permitted on any one lot. In the TR-6, MR-10, MR-24, NO, PO, NB, PB, CB, PI, GI, HI and I Districts, more than one principal building shall be permitted on any one lot upon the granting of a conditional use permit for a large development in compliance with subsection 78-205(11).
(10)
Reserved.
(11)
Large development regulations: The following definitions shall be incorporated as part of this section:
(a)
Large scale retail and/or commercial development: An area of land comprising one or more contiguous parcels or building sites for a single enterprise or multiple enterprises engaged primarily in retail sales and/or commercial services, the area of which is subject to a coordinated plan of building placement where the cumulative size of the building or buildings housing enterprises that are or will be engaged in retail sales and/or commercial services exceeds 20,000 square feet of gross floor area, including both display and enclosed storage areas, and where one or both of the following conditions exist:
1.
The parking area is or will be served by an integrated system of off-street vehicular parking benefiting all or substantially all improvements within such area.
2.
The area is or will be subject to reciprocal access rights benefiting all or substantially all improvements within such area.
(b)
Large scale retail building: A single building in which 20,000 square feet or more of gross floor area, including enclosed storage areas, is or will be used primarily for retail sales.
(c)
Large scale commercial service building: A single building in which 20,000 square feet or more of gross floor area, including enclosed storage areas, is or will be used primarily for commercial services.
(d)
Retail sale: The transfer of title to tangible personal property in the ordinary course of business to the purchaser for consumption or use other than resale or further processing or manufacturing, but not including transfers in response to orders placed by mail, telephone, internet or similar means where the tangible personal property is shipped to the purchaser.
(e)
Commercial services: Labor or services provided in the ordinary course of business that do not produce a tangible commodity. For purposes of this ordinance, "commercial services" may include retail sales that are incidental to the primary use of providing commercial services.
(f)
The following shall apply to all large developments:
1.
Applicability. The requirements of this section are applicable to all new retail and commercial service developments according to the schedule in Figure 2.1 at the end of this section, and such developments shall be conditional uses in the zoning districts in which they are allowed. A separate conditional use permit is not required where such developments are part of a PD district. All additions to existing retail and commercial service developments built either before or after the adoption of this section, which results in the total development size reaching a new threshold limit as defined in Figure 2.1 shall also require a conditional use permit and become subject to the requirements of this section.
The following standards are intended to ensure that large retail and commercial service developments are properly located and are compatible with the surrounding area and the overall community character of the city. Such projects shall also be subject to the more general standards for the approval of conditional use permits or PD districts.
2.
Requirements.
a.
Compatibility with city plans. A compatibility report is required when a retail and commercial service development reaches a defined threshold as outlined in Figure 2.1. The applicant shall provide, through a written compatibility report submitted with the petition for a conditional use permit or rezoning application for the PD district, adequate evidence that the proposed building and overall development project will be compatible with the city's comprehensive plan, any detailed neighborhood plan for the area, and any other plans officially adopted by the city.
b.
Large development questionnaire. A large development questionnaire shall be completed when a development reaches a defined threshold as outlined in Figure 2.1. The large development questionnaire shall be in the format included as Figure 2.2 at the end of this section.
c.
Traffic impact analysis. A traffic impact analysis is required when a development reaches a defined threshold as outlined in Figure 2.1. The traffic impact analysis shall be completed in accordance with the most current revision of the Traffic Impact Analysis Guidelines published by the State of Wisconsin DOT. In addition, the following are required:
d.
All projects shall have direct access to an arterial street, or to a collector level street deemed appropriate by the planning commission;
e.
Vehicle access shall be designed to accommodate peak on-site traffic volumes without disrupting traffic on public streets or impairing pedestrian safety. This shall be accomplished through adequate parking lot design and capacity; access drive entry throat length, width, design, location, and number; traffic control devices; and sidewalks;
f.
The site design shall provide direct connections to adjacent land uses if required by the city;
g.
The applicant shall provide funding to the city to hire a traffic engineer of the city's choice to complete and present a traffic impact analysis;
h.
Where the applicant's or the city's traffic impact analysis indicates that a project may cause off-site public roads, intersections, or interchanges to function below level of service (LOS) C, then the city may deny the application, may require a size reduction in the proposed development, and/or may require the developer to construct and/or pay for required off-site improvements to achieve LOS C for a planning horizon of a minimum of ten years assuming full build-out of the development;
i.
The city has the option to require a trip generation study.
3.
Economic and fiscal impact analysis. An economic and fiscal impact analysis is required when a development reaches a defined threshold as outlined in Figure 2.1. The economic and fiscal impact analysis shall include all of the items identified in Figure 2.3 of this section. In addition, the economic and fiscal impact analysis shall include the following:
a.
Identify and assess the economic and fiscal impacts on the community;
b.
Propose measures to mitigate adverse impacts and/or maximize positive impacts including provision of infrastructure or public services improvements sufficient to support the project. Any adverse impacts that cannot be mitigated shall be identified. Mitigation measures to be implemented by the applicant shall be identified;
c.
The applicant shall provide the necessary funding to the city to hire a consultant of the city's choice, with appropriate experience to complete and present an economic and fiscal impact analysis to the city.
4.
Detailed neighborhood plan. In the absence of an adopted detailed neighborhood plan for the subject property, the conditional use or planned development application for a development exceeding 80,000 square feet in total gross floor area of all combined buildings within the development shall be accompanied or preceded by a new city-approved detailed neighborhood plan for all areas within 1,500 feet of the subject property, as measured from the outer perimeter of the subject property or group of properties proposed for development, and any other nearby lands as determined by the planning commission and common council to be part of the defined neighborhood. The detailed neighborhood plan shall clearly demonstrate the provision of land use, multi-modal transportation, utility, stormwater management and community character components, and patterns that support the objectives of the city's comprehensive plan, as determined by the planning commission and common council.
5.
The detailed neighborhood plan shall contain the following specific elements at a scale of not less than one inch equals 400 feet:
a.
Land use with specific zoning districts and/or land uses;
b.
Transitional treatments such as berms and/or landscaping between areas with differing land uses or character;
c.
Complete public road network;
d.
Pedestrian and bicycle network;
e.
Transit routes and stops, where applicable;
f.
Conceptual stormwater management network;
g.
Public facility sites including parks, schools, conservation areas, public safety facilities and public utility facilities;
h.
Recommendations for community character themes including building materials, landscaping, streetscaping and signage.
6.
Facilities and associated features. The following requirements are applicable when a retail and commercial service development reaches the defined threshold outlined in Figure 2.1:
a.
Building location. Where buildings are proposed to be distant from a public street, as determined by the planning commission, the overall development design shall include smaller buildings on pads or outlots closer to the street. Placement and orientation must facilitate appropriate land use transitions and appropriate traffic flow to adjoining roads and neighboring commercial areas, and neighborhoods, and must forward community character objectives as described in the city's comprehensive plan.
b.
Building materials. Exterior building materials shall be of comparable aesthetic quality on all sides. Building materials such as glass, brick, tinted and decorative concrete block, wood, stucco, and exterior insulation and finish systems (EIFS) shall be used, as determined appropriate by the planning commission. Decorative architectural metal with concealed fasteners or decorative tilt-up concrete panels may be approved if incorporated into the overall design of the building.
c.
Building design. The building exterior shall complement other buildings in the vicinity, and shall be of a design determined appropriate by the planning commission, including the following:
A.
The building shall employ varying setbacks, heights, roof treatments, doorways, window openings, and other structural or decorative elements to reduce apparent size and scale of the building;
B.
A minimum of 20 percent of the structure's facades that are visible from a public street shall employ actual protrusions or recesses with a depth of at least six feet. No uninterrupted facade shall extend more than 100 feet;
C.
A minimum of 20 percent of all of the combined linear roof eave or parapet lines of the structure shall employ differences in height, with such differences being six feet or more as measured eave to eave or parapet to parapet;
D.
Roofs with particular slopes may be required by the city to complement existing buildings or otherwise establish a particular aesthetic objective;
E.
Ground floor facades that face public streets shall have arcades (a series of outdoor spaces located under a roof or overhang and supported by columns or arches), display windows, entry areas, awnings, or other such features along no less than 50 percent of their horizontal length. The integration of windows into building design is required, and shall be transparent, clear glass (not tinted) or spandrel glass between three to eight feet above the walkway along any facades facing a public street. The use of blinds shall be acceptable where there is a desire for opacity;
F.
Building facades shall include a repeating pattern that includes no less than three of the following elements: (i) color change, (ii) texture change, (iii) material modular change, (iv) expression of architectural or structural bay through a change in plane no less than 24 inches in width, such as an offset, reveal or projecting rib. At least one of these elements shall repeat horizontally. All elements shall repeat at intervals of no more than 30 feet, either horizontally or vertically.
d.
Building entrances. Public building entryways shall be clearly defined and highly visible on the building's exterior design, and shall be emphasized by on-site traffic flow patterns. Two or more of the following design features shall be incorporated into all public building entryways: canopies or porticos, overhangs, projections, arcades, peaked roof forms, arches, outdoor patios, display windows, distinct architectural details. When additional stores located in the principal building exceed 30 percent of the gross floor area, separate entrances may be considered for each such store that shall conform to the above requirements.
e.
Building color. Building facade colors shall be non-reflective, subtle, neutral, or earth tone. The use of high intensity colors, metallic colors, fluorescent colors or black on facades shall be prohibited. Building trim and architectural accent elements may feature bright colors or black, but such colors shall be muted, not metallic, not fluorescent, and not specific to particular uses or tenants. Standard corporate and trademark colors shall be permitted only on signage, subject to the limitations in chapter 78, article VIII.
f.
Screening.
A.
All ground-mounted and wall-mounted mechanical equipment, refuse containers and any permitted outdoor storage shall be fully concealed from on-site and off-site ground level views, with materials identical to those used on the building exterior;
B.
All rooftop mechanical equipment shall be screened by parapets, upper stories, or other areas of exterior walls or roofs so as to not be visible from public streets adjacent or within 1,000 feet of the subject property. Fences or similar rooftop screening devices may not be used to meet this requirement;
C.
Loading docks shall be completely screened from surrounding roads and properties. Said screening may be accomplished through loading areas internal to buildings, screen walls, which match the building exterior in materials and design, fully opaque landscaping at time of planting, or combinations of the above;
D.
Gates and fencing may be used for security and access, but not for screening, and they shall be of high aesthetic quality. Decorative metal picket fencing and screening is acceptable. Chain link, wire mesh or wood fencing is unacceptable. Decorative, heavy-duty wood gates may be used.
g.
Parking.
A.
Parking lots in which the number of spaces significantly exceeds the minimum number of parking spaces required in section 78-704 shall be allowed only with specific and reasonable justification;
B.
Parking lot design shall employ interior, curbed landscaped islands at all parking aisle ends. In addition, the project shall provide landscaped islands within each parking aisle spaced at intervals no greater than one island per every 20 spaces in that aisle. Islands at the ends of aisles shall count toward meeting this requirement. Each required landscaped island shall be a minimum of 360 square feet in landscaped area;
C.
Landscaped and curbed medians, a minimum of ten feet in width from back-of-curb to back-of-curb, shall be used to create distinct parking areas of no more than 120 parking stalls.
h.
Bicycle and pedestrian facilities.
A.
The entire development shall provide for safe pedestrian and bicycle access to all uses within the development, connections to existing and planned public pedestrian and bicycle facilities, and connections to adjacent properties;
B.
Pedestrian walkways shall be provided from all building entrances to existing or planned public sidewalks or pedestrian/bike facilities. The minimum width for sidewalks adjacent to buildings shall be ten feet; and the minimum width for sidewalks elsewhere in the development shall be five feet;
C.
Sidewalks other than street sidewalks or building aprons shall have adjoining landscaping along at least 50 percent of their length. Such landscape shall match the landscaping used for the street frontages;
D.
Crosswalks shall be distinguished from driving surfaces to enhance pedestrian safety by using different pavement materials, or pavement color, or pavement textures, and signage;
E.
The development shall provide secure, integrated bicycle parking at a rate of one bicycle rack space for every 50 vehicle parking spaces;
F.
The development shall provide exterior pedestrian furniture in appropriate locations at a minimum rate of one seat for every 20,000 square feet of gross floor area;
G.
The development shall provide interior pedestrian furniture in appropriate locations at a minimum rate of one bench seat for every 10,000 square feet of gross floor area. Seating in food service areas, or other areas where food or merchandise purchasing activities occur shall not count toward this requirement. A minimum of four seats shall be located within the store, with a clear view through exit doors to a passenger pick-up or drop-off area.
i.
Central areas and features. Each development exceeding 80,000 square feet in total gross floor area shall provide central area(s) or feature(s) such as a patio/seating area, pedestrian plaza with benches, outdoor playground area, water feature, and/or other such deliberately designated areas or focal points that adequately enhance the development or community. All such areas shall be openly accessible to the public, connected to the public and private sidewalk system, designed with materials compatible with the building and remainder of the site, and shall be maintained over the life of the building project.
j.
Cart returns. A minimum of one 200-square foot cart return area shall be provided for every 100 parking spaces. Cart corrals shall be of durable, non-rusting, all season construction, and shall be designed and colored to be compatible with the building and parking lot light standards. There shall be no exterior cart return or cart storage areas located within 25 feet of the building.
k.
Outdoor display areas. Exterior display areas shall be permitted only where clearly depicted on the approved site plan. All exterior display areas shall be separated from motor vehicle routes by a physical barrier visible to drivers and pedestrians, and by a minimum of ten feet. Display areas on building aprons must maintain a minimum walkway width of ten feet between the display items and any vehicle drives.
l.
Outdoor storage uses and areas. Exterior storage structures or uses, including the parking or storage of service vehicles, trailers, equipment, containers, crates, pallets, merchandise, materials, fork lifts, trash, recyclables, and all other items shall be permitted only where clearly depicted and labeled on the approved site plan, such outdoor storage uses and areas shall be appropriately screened as required by subsection 78-205(11)(f)6f.
m.
Landscaping. On-site landscaping shall be provided at time of building occupancy and maintained per the following landscaping requirements:
A.
Landscaping plan shall be submitted to the planning commission for approval, as part of the site plan.
B.
Building foundation landscaping is required for all building frontages facing public streets in order to provide visual breaks in the mass of the building. Such foundation landscaping shall be placed along 30 percent of facades facing public streets. Foundation landscaping may be planted between the building and drive lane. One ornamental tree with a minimum one and one-half inch caliper or one minimum six-foot tall tree ("whips" not permitted), and four shrubs at a minimum height of 18 inches tall shall be planted for every ten linear feet of building foundation planter area. Appropriate trees and shrubs include crabapple, birch, cherry, hawthorne, service berry, arborvitae, dogwood, lilac, vibernum, cotoneaster, forsythia, hazelnut, barberry, spirea, juniper, yew, or similar species and varieties approved by the city;
C.
One street tree at a minimum of two-inch caliper shall be planted at 50-foot centers along, and within ten feet of, all public and private streets and drives, including parking lot connections and circulation drives, and loading areas. Such tree plantings shall be planted in tree wells along the circulation drives adjacent to the sides of the store that face a public or private street, along both sides of internal drives, and along the outside edge of loading areas. Appropriate trees include sugar maple, pin oak, ginkgo, or similar species and varieties approved by the city;
D.
One shade tree at a minimum of two-inch caliper shall be planted on each parking lot peninsula and island. Appropriate trees include honey locust, linden, sugar maple, red maple, or similar species and varieties approved by the city;
E.
Where possible, all landscaped areas shall be at least ten feet wide in their smallest dimension, except that tree wells may be a minimum of 36 square feet;
F.
For development exceeding 40,000 square feet in total gross floor area, and where the subject property abuts an area zoned or planned for residential, institutional, or office use, a minimum six-foot high berm shall be provided. The berm shall be planted with a double row of white, green or blue spruce plantings, or similar species and varieties approved by the city, spaced 15 feet on center.
n.
Lighting. On-site exterior lighting shall meet all the standards of section 78-707, except that in addition:
A.
Total cut-off luminaries with angles of less than 90 degrees shall be required for all pole and building security lighting to ensure no fugitive up lighting occurs;
B.
At a minimum, as measured over ambient lighting conditions on a clear night, exterior lighting shall not exceed more than one-half foot-candles above ambient levels along all property lines, and shall not exceed an average illumination level of 3.6 foot-candles nor provide below a minimum of 0.9 foot-candles in public parking and pedestrian areas;
C.
The color and design of pole lighting standards shall be compatible with the building and the city's public lighting in the area, and shall be uniform throughout the entire development site.
D.
Outdoor lighting shall be full cut-off fixtures and downward facing and no direct light shall bleed onto adjacent properties. Reflected glare onto nearby buildings, streets or pedestrian areas is prohibited. The applicant must provide to the city information on how outdoor lighting will be accomplished to minimize impacts on adjacent properties and roadways. To minimize any indirect overflow of light on adjacent properties, the height of any proposed parking lot light standard should be as short as possible and should stair step down to a lower height when close to residential uses.
E.
The applicant shall submit to the city sufficient information, in the form of an overall exterior lighting plan, to enable the city to determine that the requirements of this section will be satisfied. The exterior lighting plan shall include at least the following:
1.
Manufacturer specification sheets, cut-sheets or other information provided by the manufacturer for all proposed lighting fixtures.
2.
The proposed location, mounting height, and aiming point of all exterior lighting fixtures.
3.
If building elevations are proposed for illumination, drawings shall be provided for all relevant building elevations showing the fixtures, the portions of the elevations to be illuminated, the luminance levels of the elevations, and the aiming point for any remote light fixture.
4.
A brief written narrative, with accompanying plan or sketch, which demonstrates the objectives of the lighting and a computer generated photometric grid showing foot-candle readings every ten feet within the property or site, and ten feet beyond the property lines at a scale specified by city staff. Iso-footcandle contour line style plans are also acceptable.
o.
Signage. The plan for exterior signage shall provide for modest, coordinated, and complimentary exterior sign locations, configurations, and color throughout the development, including outlots. All freestanding signage within the development shall complement on-building signage. Monument style ground signs are required, and shall not exceed a height of eight feet. Consolidated signs for multiple users may be required instead of multiple individual signs. The city may require the use of muted corporate colors on signage if proposed colors are not compatible with the city's design objectives for the area. The use of logos, slogans, symbols, patterns, striping and other markings, and colors associated with a franchise or chain is permitted, and shall be considered as contributing to the number and area of permitted signs.
p.
Noise. Noise associated with activities at the site shall not create a nuisance to nearby properties, and shall comply with applicable city noise requirements.
q.
Natural resources protection. Each project shall meet the erosion control and stormwater management standards found in chapter 10, article III and other [applicable] city ordinances. In addition, post-development runoff rates shall not exceed pre-settlement rates. In general, existing natural features shall be integrated into the site design as a site and community amenity. Maintenance of any storm water detention or conveyance features are solely borne by the developer/owner unless dedicated and accepted by the city.
A.
Additional requirements. All large scale retail and commercial buildings and developments in excess of 20,000 square feet are subject to the following additional requirements:
1.
Policy on vacation of existing sites. Where such a building is proposed as a replacement location for a business already located within the city, the city shall prohibit any privately imposed limits on the type or reuse of the previously occupied building through conditions of sale or lease.
2.
Developer's agreement. The developer shall enter into a development agreement with the city, which shall include the payment of all utilities including but not limited to storm water, sanitary sewer, and street infrastructure, and the commitment to adhere to the policy on vacation of existing sites per subsection (1) above. Off-site improvements may also be required as part of the development agreement.
3.
Absolute building area cap. No individual building shall exceed a total of 155,000 square feet in gross floor area. This cap may not be exceeded by the granting of a planned development permit.
4.
Outlots. All buildings on outlots shall be of architectural quality comparable to the primary structure as determined by the planning commission.
(g)
Exceptions.Section 78-205(11) establishes standards for the development of buildings over 20,000 square feet of gross floor area. In the event the applicant desires a deviation or exception from such requirements, the applicant shall present justification for such deviation or exception, which may be approved or denied by the common council after recommendation by the planning commission.
(h)
Appendices. The following appendices referenced herein are incorporated into the requirements of this section. Amendments to the appendices may be made by a majority vote of the common council after review and recommendation by the planning commission.
Figure 2.1: Large Scale Retail and Commercial Development Requirements
Figure 2.2 Large Development Questionnaire
Figure 2.3: Economic and Fiscal Impact Analysis Requirements
(12)
Division or combining of a lot. No recorded lot shall be divided into two or more lots, and no two or more recorded lots shall be combined into one or more lots, unless such division or combination results in the creation of lots, each of which conforms to all of the applicable regulations of the zoning district in which said lot is located (as set forth in this chapter). (See also the City of Stoughton Land Division Ordinance.)
(Ord. No. 0-6-09, 6-23-2009; Ord. No. 0-25-2009, § 1, 12-22-2009; Memo. of 3-22-2010; Ord. No. 0-4-2011, §§ 18—101, 148—150, 5-10-2011; Ord. No. 0-29-2013, § 1, 12-10-2013; Ord. No. 0-4-2015, § 2, 4-14-2015; Ord. No. 0-8-2019, 3-12-2019; Ord. No. 0-26-2020, 12-8-2020)
The land use categories employed by this chapter are defined in this section. Land uses which are not listed in this chapter are not necessarily excluded from locating within any given zoning district. Section 78-911 empowers the zoning administrator to make interpretations on matters regarding specific land use proposals which are not addressed by this chapter.
(1)
Residential land uses.
(a)
Conventional residential development.
Description: This land use includes, but is not limited to, all residential developments which do not provide permanently protected green space areas. Property which is under common ownership of a property owners' association is permitted, but is not a required component of this type of development. Up to ten percent of a conventional residential development's gross site area (GSA) can contain natural resource areas which must be protected (or other permanently protected green space areas), without a reduction in maximum gross density (MGD). (See note (1)(f) below.)
Conventional residential development can be made up of the following dwelling unit types (on the following pages):
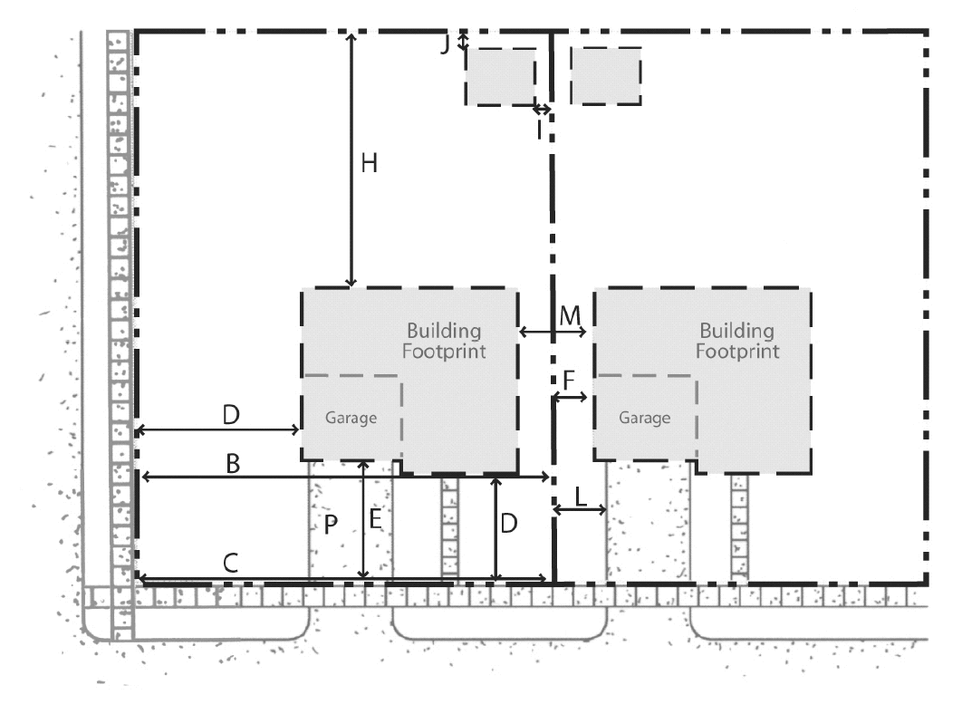
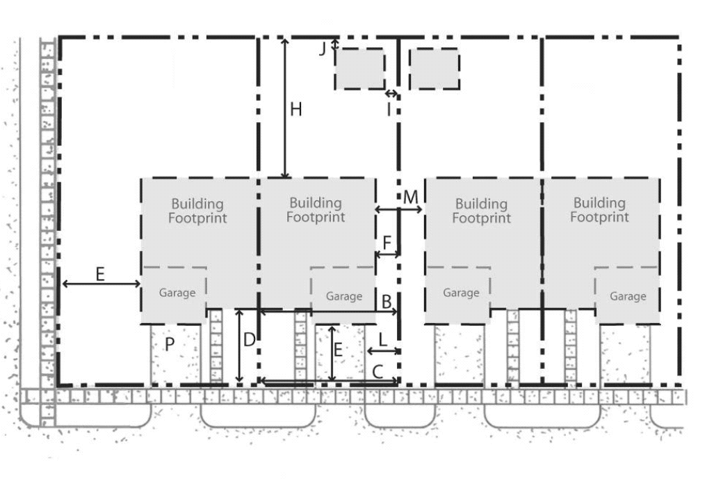
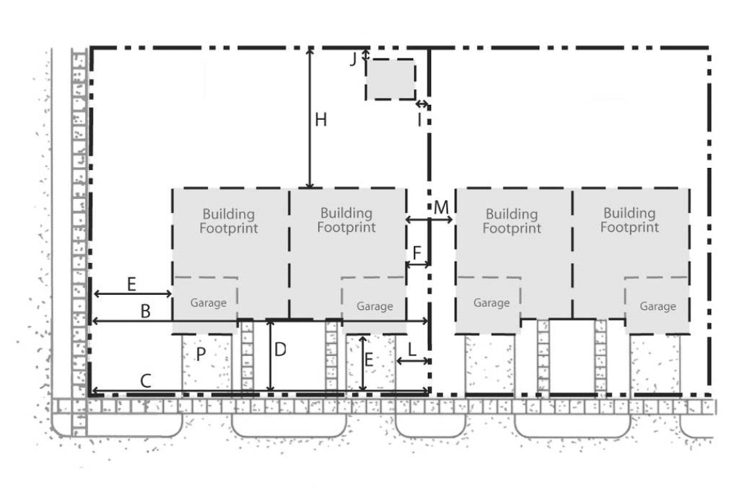
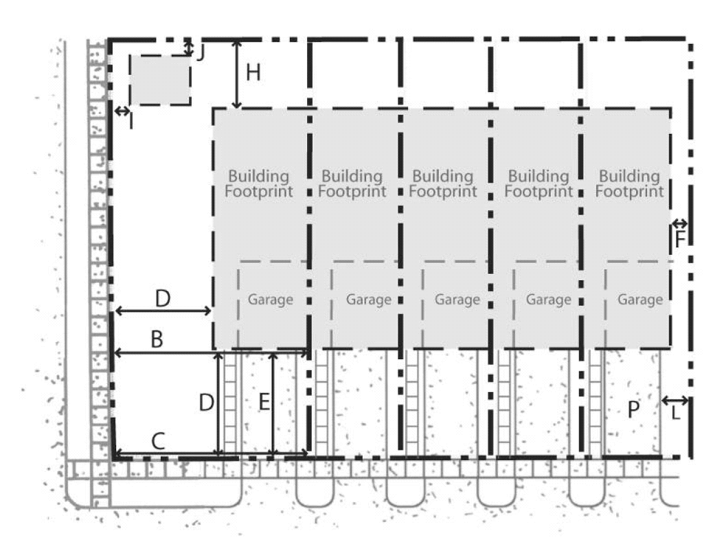
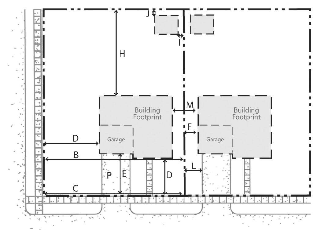
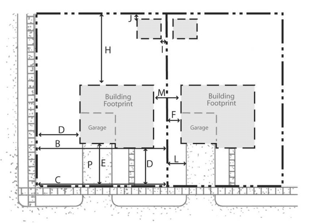
The table below indicates the measurements shown on the dwelling unit type graphics on the following pages. See article 0 for district specific regulations. (Note: all letters do not appear on all graphics.)
[A:
Reserved]
B:
Minimum lot width
C:
Minimum street frontage
D:
Front or street side lot line to house
E:
Front or street side lot line to garage
F:
Side lot line to house or garage
[G:
Reserved]
H:
Rear lot line to house or garage
I:
Side lot line to accessory structure
J:
Rear lot line to accessory structure
[K:
Reserved]
L:
Minimum paved surface setback
M:
Minimum dwelling unit separation
P:
Minimum number of off-street parking spaces required on the lot
1.
Single-family detached.
Description: A dwelling designed for and occupied by not more than one family and having no roof, wall, or floor in common with any other dwelling unit. This dwelling unit type consists of a fully detached single-family residence which is located on an individual lot or within a large development. The dwelling unit must be a site built structure built in compliance with the State of Wisconsin Uniform Dwelling Code (UDC), or may be a manufactured dwelling (modular home) as permitted by the UDC or a manufactured home as permitted by the HUD code. For any of these dwelling units, the use of a permanent, continuous UDC foundation is required. This dwelling unit type may not be split into two or more residences. Refer to the illustration below and to article I for setback requirements labeled in capital letters:
2.
Duplex.
Description: These dwelling unit types consist of a single-family dwelling which is attached on one side to another single-family residence where the entire building is under single ownership. A minimum building code required fire rated wall assembly division, separating living areas from the lowest level to flush against the underside of the roof is required between each dwelling unit. Upon the effective date of this ordinance amendment (March 3, 2016), all newly constructed duplexes are required to install a sanitary sewer lateral and public water lateral for each individual dwelling unit except, a duplex may be constructed on any existing vacant TR-6 parcel with a water lateral and a sewer lateral already stubbed to the property. At the time of construction of the duplex, the water lateral shall be split to have separate water shut off valves within the terrace for each individual unit. The sewer lateral shall also be split within the terrace to provide a separate sewer line from the terrace to each individual unit. The two residences are located on the same lot. These dwelling unit types may not be split into additional residences. Refer to the illustration below and to article I for setback requirements labeled in capital letters:
3.
Twin-house.
Description: These dwelling unit types consist of a single-family dwelling which is attached on one side to another single-family residence. A minimum building code required fire rated wall assembly division, separating living areas from the lowest level to flush against the underside of the roof is required between each dwelling unit. Upon the effective date of the ordinance from which this section is derived, all newly constructed twin homes are required to have a sanitary sewer lateral to the sanitary main and a public water lateral from the water main, for each individual dwelling unit. Separate water and sewer laterals, to the respective mains, are required when converting an existing duplex to a twin home or when building a new twin home. The two residences are located on separate lots. The twin house is distinguished from the duplex house merely by having each unit located on an individual lot or within a large development. These dwelling unit types may not be split into additional residences. A mutual maintenance agreement is recommended to be drafted and recorded between property owners to address for example; repair and/or replacement of the exterior components of the structure. Refer to the illustration on the following page and to article I for setback requirements labeled in capital letters:
4.
Two-flat house.
Description: This dwelling unit type consists of a single-family residence, which is in complete compliance with the State of Wisconsin Uniform Dwelling Code (UDC), which has been converted into a two-family residence. The two residences are both located on the same lot or within the same large development. This dwelling unit type may not be split into additional residences. Where permitted, this use is a conditional use and must be approved through the procedures of section 78-905. Refer to the illustration below and to article I for setback requirements labeled in capital letters:
5.
Townhouse.
Description: This dwelling unit type consists of attached, two-story, single-family residences, each having a private, individual access. This dwelling unit type is located on its own lot or within a large development and may not be split into additional residences. A minimum building code required fire rated wall assembly division, separating living areas from the lowest level through the roof, and individual sanitary sewer and public water laterals, are required between each dwelling unit. No more than six and no less than three townhouse dwelling units may be attached per group. All townhouse units within a development shall be located a minimum of 30 feet from the boundary of the development. Refer to the illustration below and to article I for setback requirements labeled in capital letters:
6.
Multiplex.
Description: This dwelling unit type consists of an attached, multi-family residence which has a private, individual exterior entrance. A minimum building code required fire rated wall assembly division, separating living areas from the lowest level through the roof, is required between each dwelling unit. No more than eight and no less than three multiplex dwelling units may be attached per group. All multiplex units within a development shall be located a minimum of 30 feet from the boundary of the development. Refer to the illustration below and to article I for setback requirements labeled in capital letters:
7.
Apartment.
Description: This dwelling unit type consists of an attached, multi-family residence which takes access from a shared entrance or hallway. A minimum building code required fire rated wall assembly division, separating living areas from the lowest level to the underside of the roof, is required between each dwelling unit. No less than three dwelling units may be located in a building. Refer to the illustration below and to article I for setback requirements labeled in capital letters:
8.
Mobile home.
Description: This dwelling unit type consists of a fully detached, single-family residence, which has not received a federal manufactured housing certificate and which is located on an individual lot or within or large development. This dwelling unit type may not be split into two or more residences. Within 30 days of occupancy, the owner shall remove the axle and install skirting per the requirements of the plan commission. Refer to the illustration below and to article I for setback requirements labeled in capital letters:
(b)
Reserved.
(c)
Reserved.
(d)
Mobile home residential subdivision.
Description: This land use is a form of residential development which is exclusively reserved for individually sold lots containing mobile home units. Each of the lots and mobile home units must meet the requirements for mobile homes listed in subsection 78-206(1)(a)8 of this chapter. Under this development option, approximately ten percent of a development's gross site area (GSA) can contain natural resource areas which must be protected (or other permanently protected green space areas), without a reduction in maximum gross density (MGD). (See note (f) below.)
1.
Regulations:
a.
Development shall be located so as to blend with adjacent residentially zoned areas to the greatest extent possible.
b.
Mobile home residential subdivisions shall comply with the same landscaping and bufferyard requirements as the Multi-Family (MR) District, as specified in section 78-610 of this chapter.
c.
No access shall be permitted to local residential streets.
(e)
Mobile home park residential development (Rental/Condo Park).
Description: This land use is a form of conventional residential development which is exclusively reserved for individually sold or rented air right pads containing mobile home units. Each of the lots and mobile home units must meet the requirements for mobile homes listed in subsection 78-206(1)(a)8 of this chapter. Under this development option, approximately ten percent of a development's gross site area (GSA) can contain natural resource areas which must be protected (or other permanently protected green space areas), without a reduction in maximum gross density (MGD). (See note (f) below.)
1.
Regulations:
a.
Development shall be located so as to blend with adjacent residentially zoned areas to the greatest extent possible.
b.
Mobile home park residential developments shall comply with the same landscaping and bufferyard requirements as the Multi-Family (MR) District, as specified in section 78-610 of this chapter.
c.
No access shall be permitted to local residential streets.
(f)
Note regarding percentage of green space and maximum density yield. This estimate is provided as a general rule of thumb for the convenience of the users of this chapter. Such a yield is not to be considered as ensured by the provisions of this chapter.
(2)
Agricultural land uses.
(a)
Cultivation.
Description: Cultivation land uses include all operations primarily oriented to the on-site, outdoor raising of plants. This land use includes trees which are raised as a crop to be replaced with more trees after harvesting, such as in nursery or Christmas tree operations. The raising of plants for consumption by farm animals is considered cultivation if said plants are consumed by animals which are located off-site.
1.
Regulations:
a.
On buildable lots, cultivation areas shall not exceed 20 percent of the lot's area.
b.
Cultivation areas shall not be located within the required front yard or street yard of any buildable or developed lot.
2.
Parking requirements: One space per employee on the largest work shift. (Note: Customer parking shall be provided based on land use.)
(b)
Husbandry.
Description: Husbandry land uses include all operations primarily oriented to the on-site raising and/or use of animals at an intensity of one animal unit or less (as defined in section 78-015) per acre.
1.
Regulations:
a.
Any building housing animals shall be located a minimum of 300 feet from any residentially zoned property, and 100 feet from all other lot lines.
b.
All outdoor animal containments (pastures, pens, and similar areas) shall be located a minimum of ten feet from any residentially zoned property.
2.
Parking requirements: One space per employee on the largest work shift. (Note: Agricultural land uses are hereby made exempt from the surfacing requirements of subsection 78-704(6)(a).
(c)
Intensive agriculture.
Description: Intensive agricultural land uses include all operations primarily oriented to the on-site raising and/or use of animals at an intensity equal to or exceeding one animal unit (as defined in section 78-015) per acre and/or agricultural activities requiring large investments in structures. Examples of such land uses include feed lots, hog farms, poultry operations, fish farms, commercial greenhouse operations and certain other operations meeting this criterion.
1.
Regulations:
a.
Shall not be located in, or adjacent to, an existing or platted residential subdivision.
b.
Shall be completely surrounded by a bufferyard with a minimum intensity of 1.00. (See section 78-610.)
c.
All buildings, structures, outdoor storage areas, and outdoor animal containments (pastures, pens and similar areas) shall be located a minimum of 300 feet from all residentially zoned property and 100 feet from all other lot lines.
d.
Shall be located in an area which is planned to remain commercially viable for agricultural land uses.
2.
Parking requirements: One space per employee on the largest work shift. (Note: Customer parking shall be provided based on land use.)
(d)
Agricultural service.
Description: Agricultural service land uses include all operations pertaining to the sale, handling, transport, packaging, storage, or disposal of agricultural equipment, products, by-products, or materials primarily used by agricultural operations. Examples of such land uses include agricultural implement sales, storage, or repair operations; feed and seed stores; agricultural chemical dealers and/or storage facilities; animal feed storage facilities; commercial dairies; food processing facilities; canning and other packaging facilities; and agricultural waste disposal facilities (except commercial composting uses, see subsection 78-206(5)(f)).
1.
Regulations:
a.
Shall not be located in, or adjacent to, an existing or platted residential subdivision.
b.
All buildings, structures, outdoor storage areas, and outdoor animal containments (pastures, pens and similar areas) shall be located a minimum of 100 feet from all lot lines.
c.
If within the RH District, shall be located in an area which is planned to remain commercially viable for agricultural land uses.
2.
Parking requirements: One space per employee on the largest work shift. (Note: Customer parking shall be provided based on land use.)
(e)
On-site agricultural retail.
Description: On-site agricultural retail land uses include land uses solely associated with the sale of agricultural products grown exclusively on the site. The sale of products grown or otherwise produced off-site shall not be permitted within on-site agricultural retail operations and such activity constitutes retail sales as a commercial land use. Packaging and equipment used to store, display, package or carry products for the convenience of the operation or its customers (such as egg cartons, baskets, containers, and bags) shall be produced off-site.
1.
Regulations:
a.
No structure or group of structures shall exceed 500 square feet in floor area.
b.
No structure shall exceed 12 feet in height.
c.
All structures shall meet all required setbacks for nonresidential land uses.
d.
Signage shall be limited to one on-site sign which shall not exceed 30 square feet in area.
e.
Such land use shall be served by no more than one driveway. Said driveway shall require a valid driveway permit.
f.
A minimum of one parking space shall be required for every 200 square feet of product display area.
g.
The sale of products which are grown or otherwise produced on non-adjacent property under the same ownership, or on property under different ownership, shall be prohibited.
h.
Said structure and fencing shall be located a minimum of 300 feet from any residentially zoned property.
2.
Parking requirements: One space per employee on the largest work shift and four spaces for customers. (Note: Customer parking shall be provided based on land use.)
(f)
Selective cutting.
Description: Selective cutting land uses include any operation associated with the one-time, continuing, or cumulative clearing, cutting, harvesting, or other destruction of trees (including by fire) where the extent of such activity is limited to an area (or combined areas) of less than or equal to 30 percent of the woodlands on the property (or up to 100 percent for developments approved prior to the effective date of this chapter). Selective cutting activity shall be limited to areas located within development pads which are designated on recorded plats or certified survey maps. The destruction of trees in an area in excess of this amount of the woodlands on the property shall be considered clear cutting, (see subsection (g), below).
1.
Regulations: Not applicable.
(g)
Clear cutting.
Description: Clear cutting land uses include the one-time, continuing, or cumulative clearing, cutting, harvesting, or other destruction (including by fire) of trees in an area (or combined areas) of more than 30 percent of the woodlands on a property (or up to 100 percent for developments approved prior to the effective date of this chapter). Clear cutting is permitted only as a conditional use. Any owner of property who intentionally clear cuts any area of his or her property or who intentionally solicits or causes another to intentionally clear cut any area of his or her property without first having secured a conditional use permit for such activity shall be subject to a forfeiture for such wrongful conduct and shall be required to implement the mitigation standards required for the destruction of woodlands solely at his/her expense, including costs associated with site inspection to confirm the satisfaction of mitigation requirements. Areas having been clear cut unintentionally as a result of fire shall not subject the owner of the property to a forfeiture for such non-approved clear cutting activity, but shall require the satisfaction of mitigation requirements at the owner's expense, including cost associated with site inspection to confirm the satisfaction of mitigation requirements.
1.
Regulations:
a.
Applicant shall demonstrate that clear cutting will improve the level of environmental protection on the subject property.
b.
Areas of the subject property which are clear cut beyond the limitations established above, shall be replanted per the requirements of section 78-609. (Referenced section requires the replanting of trees in other portions of the subject property-thereby freeing the currently wooded area for development while ensuring that the amount of required wooded area on the subject property remains constant.)
c.
Clear cutting shall not be permitted within a required bufferyard or landscaped area (see section 78-610), or within an area designated as permanently protected green space (see article VI).
(h)
Community garden.
Description: An area for cultivation and related activities divided into one or more plots to be cultivated by more than one operator or member. These areas may be on public or private lands.
1.
Regulations:
a.
All activity areas and structures shall comply with the required setbacks and height regulations for principal structures within the zoning district.
b.
Site plan submittal shall include the property owner, established sponsoring organization, and garden manager.
c.
Site plan which demonstrates considerations for and indicates locations of structures, materials storage, equipment storage, access for deliveries and pickups, water availability, shaded rest area, and availability of public parking.
d.
The following structures are permitted: tool sheds, shade pavilions, barns, rest-room facilities with composting toilets, and planting preparation houses, benches, bike racks, raised/accessible planting beds, compost bins, picnic tables, seasonal farm stands, fences, garden art, rain barrel systems, beehives, and children's play areas.
e.
Signs shall be limited to identification, information and directional signs, including sponsorship information where the sponsorship information is clearly secondary to other permitted information on any particular sign and shall not exceed a total aggregate area of 48 square feet.
f.
Fences shall comply with the regulations in section 78-718, except that chicken wire, woven wire, and related garden fencing shall be permitted without restriction around and within cultivated areas.
(i)
Market garden.
Description: An area for cultivation and related activities divided into one or more plots to be cultivated by more than one operator or member. These areas may be on public or private lands, with on-site sales of crops grown on-site.
1.
Regulations:
a.
All activity areas and structures shall comply with the required setbacks and height regulations for principal structures within the zoning district.
b.
Site plan submittal shall include the property owner, established sponsoring organization, and garden manager.
c.
Site plan which demonstrates considerations for and indicates locations of structures, materials storage, equipment storage, access for deliveries and pickups, water availability, shaded rest area, and availability of public parking.
d.
The following structures are permitted: tool sheds, shade pavilions, barns, rest-room facilities with composting toilets, and planting preparation houses, benches, bike racks, raised/accessible planting beds, compost bins, picnic tables, seasonal farm stands, fences, garden art, rain barrel systems, beehives, and children's play areas.
e.
Seasonal farm stands shall be removed from the premises or stored inside a building on the premises during that time of the year when the garden is not open for public use.
f.
Signs shall be limited to identification, information and directional signs, including sponsorship information where the sponsorship information is clearly secondary to other permitted information on any particular sign and shall not exceed a total aggregate area of 48 square feet.
g.
Fences shall comply with the regulations in section 78-718, except that chicken wire, woven wire, and related garden fencing shall be permitted without restriction around and within cultivated areas
(3)
Institutional land uses.
(a)
Passive outdoor public recreational.
Description: Passive outdoor public recreational land uses include all recreational land uses located on public property which involve passive recreational activities. Such land uses include arboretums, natural areas, wildlife areas, hiking trails, bike trails, cross country ski trails, horse trails, open grassed areas not associated with any particular active recreational land use (see (b), below), picnic areas, picnic shelters, gardens, fishing areas, and similar land uses.
1.
Parking requirements: One space per four expected patrons at maximum capacity for any use requiring over five spaces.
(b)
Active outdoor public recreational.
Description: Active outdoor public recreational land uses include all recreational land uses located on public property (including school district property) which involves active recreational activities. Such land uses include playcourts (such as tennis courts and basketball courts), playfields (such as ball diamonds, football fields, and soccer fields), tot lots, outdoor swimming pools, swimming beach areas, fitness courses, public golf courses, and similar land uses.
1.
Regulations:
a.
Facilities using night lighting and adjoining a residentially zoned property shall install and continually maintain a bufferyard with a minimum opacity of 0.60 (see section 78-610). Said bufferyard shall be located at the property line adjacent to said residentially zoned property.
b.
All structures and active recreational areas shall be located a minimum of 50 feet from any residentially zoned property.
c.
Facilities which serve a regional or community-wide function shall provide off-street passenger loading area if the majority of the users will be children.
2.
Parking requirements: One space per four expected patrons at maximum capacity for any use requiring over five spaces.
(c)
Indoor institutional.
Description: Indoor institutional land uses include all indoor public and not for profit recreational facilities (such as gyms, swimming pools, libraries, museums, and community centers), schools, churches, nonprofit clubs, nonprofit fraternal organizations, convention centers, hospitals, jails, prisons, and similar land uses.
1.
Regulations:
a.
Shall provide off-street passenger loading area if the majority of the users will be children (as in the case of a school, church, library, or similar land use).
b.
All structures shall be located a minimum of 50 feet from any residentially zoned property.
2.
Parking requirements: Generally, one space per three expected patrons at maximum capacity. However, see additional specific requirements below:
a.
Church: One space per five seats at the maximum capacity.
b.
Community or recreation center: One space per 300 square feet of gross floor area, or one space per four patrons to the maximum capacity, whichever is greater, plus one space per employee on the largest work shift.
c.
Funeral home: One space per three patron seats at the maximum capacity, plus one space per employee on the largest work shift.
d.
Hospital: One space per two patient beds, plus one space per staff doctor and one space per two employees on the largest work shift.
e.
Library or museum: One space per 300 square feet of gross floor area or one space per four seats to the maximum capacity, whichever is greater, plus one space per employee on the largest work shift.
f.
Elementary and Junior High: One space per two employees.
g.
Senior High: One space per two employees, plus 30 percent of maximum capacity.
h.
College or Trade School: One space per staff member on the largest work shift, plus one space per two students of the largest class attendance period.
(d)
Outdoor institutional.
Description: Outdoor institutional land uses include cemeteries, privately held permanently protected green space areas, country clubs, golf courses, and similar land uses.
1.
Regulations:
a.
Shall provide off-street passenger loading area if a significant proportion of the users will be children.
b.
All structures and actively used outdoor recreational areas shall be located a minimum of 50 feet from any residentially zoned property.
c.
Facilities using night lighting and adjoining a residentially zoned property shall install and continually maintain a bufferyard with a minimum opacity of 0.60 (see section 78-610). Said bufferyard shall be located at the property line adjacent to said residentially zoned property.
d.
Shall comply with section 78-905, standards and procedures applicable to all conditional uses.
2.
Parking requirements: Generally, one space per three expected patrons at maximum capacity. However, see additional specific requirements below:
a.
Cemetery: One space per employee, plus one space per three patrons to the maximum capacity of all indoor assembly areas.
b.
Golf course: 36 spaces per nine holes, plus one space per employee on the largest work shift, plus 50 percent of spaces otherwise required for any accessory uses (e.g., bars, restaurant).
c.
Swimming pool: One space per 30 percent of capacity in persons.
d.
Tennis court: Three spaces per court.
(e)
Public service and utilities.
Description: Public service and utilities land uses include all city, county, state and federal facilities (except those otherwise treated in this section), emergency service facilities such as fire departments and rescue operations, wastewater treatment plants, public and/or private utility substations, water towers, utility and public service related distribution facilities, and similar land uses.
1.
Regulations:
a.
Outdoor storage areas shall be located a minimum of 50 feet from any residentially zoned property.
b.
All outdoor storage areas adjoining a residentially zoned property shall install and continually maintain a bufferyard with a minimum opacity of .60 (see section 78-610). Said bufferyard shall be located at the property line adjacent to said residentially zoned property.
c.
All structures shall be located a minimum of 20 feet from any residentially zoned property.
d.
The exterior of all buildings shall be compatible with the exteriors of surrounding buildings.
2.
Parking requirements: One space per employee on the largest work shift, plus one space per company vehicle normally stored or parked on the premises, plus one space per 500 square feet of gross square feet of office area.
(f)
Institutional residential development.
Description: This land use is a form of residential development designed to accommodate institutional residential land uses, such as senior housing, retirement homes, assisted living facility, nursing homes, hospices, group homes, convents, monasteries, dormitories, nursing homes, convalescent homes, limited care facilities, rehabilitation centers, and similar land uses not considered to be community living arrangements under the provisions of Wisconsin Statutes 62.23. No individual lots are required, although the development shall contain a minimum of 800 square feet of gross site area for each occupant of the development. A minimum of 30 percent of the development's gross site area (GSA) shall be held as permanently protected green space.
1.
Regulations.
a.
Project shall provide an off-street passenger loading area at a minimum of one location within the development.
2.
Parking requirements:
a.
Senior housing or retirement housing: One-half space per dwelling unit.
b.
Assisted living facility or limited care facility: One space per two dwelling units.
c.
Monastery, convent or dormitory: One space per six residents, plus one space per employee on the largest work shift, plus one space per five chapel seats if the public may attend.
d.
Nursing home or hospice: One space per four patient beds, plus one space per two employees on the largest work shift, plus one space per doctor.
(g)
Community living arrangement. (1—8 residents)
Description: Community living arrangement land uses include all facilities provided for in Wisconsin Statutes 46.03(22), including child welfare agencies, group homes for children, foster homes, treatment foster homes, adult family homes, and community based residential facilities. Community living arrangements do not include day care centers (see separate listing); nursing homes (an institutional residential land use); general hospitals, special hospitals, prisons, or jails (all indoor institutional land uses). Community living arrangement facilities are regulated depending upon their capacity as provided for in Wisconsin Statutes 62.23(7)(i), provided any such regulations do not violate federal or state housing or anti-discrimination laws.
1.
Regulations:
a.
No community living arrangement shall be established within 2,500 feet of any other such facility regardless of its capacity unless planning commission and city council agree to a reduction in spacing.
The applicant shall demonstrate that the total capacity of all community living arrangements (of all capacities) in the city shall not exceed one percent of the city's population (unless specifically authorized by the common council following a public hearing).
Foster homes housing four or fewer children and licensed under Wisconsin Statutes 48.62 shall not be subject to a., above; and shall not be subject to, or count toward, the total arrived at in subsection b., above.
State Law reference— Section 62.23, Wisconsin Statutes.
2.
Parking requirements: Three spaces.
(h)
Community living arrangement. (9—15 residents)
Description: See subsection (g), above.
1.
Regulations:
a.
No community living arrangement shall be established within 2,500 feet of any other such facility, regardless of capacity unless planning commission and city council agree to a reduction in spacing.
b.
The applicant shall demonstrate that the total capacity of all community living arrangements (of all capacities) in the city shall not exceed one percent of the city's population (unless specifically authorized by the common council following a public hearing).
State Law reference— Section 62.23, Wisconsin Statutes.
2.
Parking requirements: Four spaces.
(i)
Community living arrangement. (16+ residents)
Description: See subsection (g), above.
1.
Regulations:
a.
No community living arrangement shall be established within 2,500 feet of any other such facility, regardless of capacity unless planning commission and city council agree to a reduction in spacing.
The total capacity of all community living arrangements (of all capacities) in the city shall not exceed one percent of the city's population (unless specifically authorized by the common council following a public hearing).
State Law reference— Section 62.23, Wisconsin Statutes.
2.
Parking requirements: One space per every three residents.
(4)
Commercial land uses.
(a)
Office.
Description: Office land uses include all exclusively indoor land uses whose primary functions are the handling of information or administrative services. Such land uses do not typically provide services directly to customers on a walk-in or on-appointment basis.
1.
Parking requirements: One space per 300 square feet of gross floor area.
(b)
Personal or professional service:
Description: Personal service and professional service land uses include all exclusively indoor land uses whose primary function is the provision of services directly to an individual on a walk-in or on-appointment basis. Examples of such uses include professional services, insurance or financial services, realty offices, medical offices and clinics, veterinary clinics, barber shops, beauty shops, and related land uses.
1.
Parking requirements: One space per 300 square feet of gross floor area.
(c)
Indoor sales or service.
Description: Indoor sales and service land uses include all land uses which conduct or display sales or rental merchandise or equipment, or non-personal or non-professional services, entirely within an enclosed building. This includes self-service facilities such as coin-operated laundromats. Depending on the zoning district, such land uses may or may not display products outside of an enclosed building. Such activities are listed as "Outdoor Display Incidental to Indoor Sales" under "Accessory Uses" in the Table of Land Uses, (subsection 78-206(8)(f)). A land use which contains both indoor sales and outdoor sales exceeding 15 percent of the total sales area of the building(s) on the property shall be considered as an outdoor sales land use, (See (d), below.). Artisan studios are regulated in subsection 78-206(4)(r).
1.
Regulations:
a.
Permitted uses shall include indoor sales and personal services which support office tenants such as office supply stores, copy centers and travel agencies.
2.
Parking requirements: One space per 300 square feet of gross floor area.
(d)
Outdoor display.
Description: Outdoor display land uses include all land uses which conduct sales, display sales or rental merchandise or equipment outside of an enclosed building. Example of such land uses include vehicle sales, vehicle rental, manufactured and mobile housing sales and monument sales. The area of outdoor sales shall be calculated as the area which would be enclosed by a required physical separation installed and continually maintained in the most efficient manner which completely encloses all materials displayed outdoors. Such land uses do not include the storage or display of inoperative vehicles or equipment, or other materials typically associated with a junkyard or salvage yard. (See subsection (5), below, also.) If a land use displays for sale or rent only a limited amount of product outside of an enclosed building, such use may instead be considered incidental to indoor sales under subsection 78-206(8)(f).
1.
Regulations:
a.
The display of items shall not be permitted in permanently protected green space areas, required landscaped areas, or required bufferyards.
b.
The display of items shall not be permitted within five feet of a property line.
c.
In no event shall the display of items reduce or inhibit the use or number of parking stalls provided on the property below the requirement established by the provisions of section 78-704. If the number of provided parking stalls on the property is already less than the requirement, such display area shall not further reduce the number of parking stalls already present.
d.
Display areas shall be separated from any circulation area by a minimum of five feet. This separation shall be clearly delimited by a physical separation such as a greenway, curb, fence, or line of planters, or by a clearly marked paved area.
e.
Signs, screening, enclosures, landscaping, or materials being displayed shall not interfere in any manner with either on-site or off-site traffic visibility, including potential traffic/traffic and traffic/pedestrian conflicts.
f.
Outdoor display shall be permitted during the entire calendar year, however, if goods are removed from the display area all support fixtures used to display the goods shall be removed within ten calendar days of the goods' removal.
g.
Inoperative vehicles or equipment, or other items typically stored or displayed in a junkyard or salvage yard, shall not be displayed for this land use.
h.
Facility shall provide a bufferyard with a minimum opacity of .60 along all borders of the display area abutting residentially zoned property, except per subsection e., above (See section 78-610.).
2.
Parking regulations: One space per 300 square feet of gross floor area.
(e)
Indoor maintenance service.
Description: Indoor maintenance services include all land uses which perform maintenance services (including repair) and contain all operations (except loading) entirely within an enclosed building. Because of outdoor vehicle storage requirements, vehicle repair and maintenance is considered a vehicle repair and maintenance land use, (see subsection 78-206(4)(q)).
1.
Parking requirements: One space per 300 square feet of gross floor area.
(f)
Outdoor maintenance service.
Description: Outdoor maintenance services include all land uses which perform maintenance services, including repair, and have all, or any portion, of their operations located outside of an enclosed building.
1.
Regulations:
a.
All outdoor activity areas shall be completely enclosed by a minimum six feet high fence. Such enclosure shall be located a minimum of 50 feet from any residentially zoned property and shall be screened from such property by a bufferyard with a minimum opacity of .60 (see Section 78-610).
2.
Parking requirements: One space per 300 square feet of gross floor area, or one space per each employee on the largest shift, whichever is less.
(g)
In-vehicle sales or service.
Description: In-vehicle sales and service land uses include all land uses which perform sales and/or services to persons in vehicles, or to vehicles which may or may not be occupied at the time of such activity (except vehicle repair and maintenance services, see subsection 78-206(4)(q)). Such land uses often have traffic volumes which exhibit their highest levels concurrent with peak traffic flows on adjacent roads. Examples of such land uses include drive-in, drive-up, and drive-through facilities, vehicular fuel stations, all forms of car washes. If performed in conjunction with a principal land use (for example, a convenience store, restaurant or bank), in-vehicle sales and service land uses shall be considered an accessory use (see subsection 78-206(8)(g)).
1.
Regulations:
a.
Clearly marked pedestrian crosswalks shall be provided for each walk-in customer access to the facility adjacent to the drive-through lane(s).
b.
The drive-through facility shall be designed so as to not impede or impair vehicular and pedestrian traffic movement, or exacerbate the potential for pedestrian/vehicular conflicts.
c.
In no instance shall a drive-through facility be permitted to operate which endangers the public safety, even if such land use has been permitted under the provisions of this section.
d.
The setback of any overhead canopy or similar structure shall be a minimum of ten feet from all street rights-of-way lines, a minimum of 20 feet from all residentially-zoned property lines, and shall be a minimum of five feet from all other property lines. The total height of any overhead canopy or similar structure shall not exceed 20 feet per the measurement of roof height.
e.
All vehicular areas of the facility shall provide a surface paved with concrete or bituminous material which is designed to meet the requirements of a minimum four ton axle load.
f.
Facility shall provide a bufferyard with a minimum opacity of .60 along all property borders abutting residentially zoned property (section 78-610).
g.
Interior curbs shall be used to separate driving areas from exterior fixtures such as fuel pumps, vacuums, menu boards, canopy supports and landscaped islands. Said curbs shall be a minimum of six inches high and be of a non-mountable design. No curb protecting an exterior fixture shall be located closer than 25 feet to all property lines.
2.
Parking requirements: Refer to the parking requirements of the other land use activities on the site (such as indoor sales and service for a gas station/convenience store, or office for a bank). Each drive-up lane shall have a minimum stacking length of 100 feet behind the pass through window and 40 feet beyond the pass through window. This requirement may be adjusted by the plan commission through the conditional use process.
(h)
Indoor commercial entertainment.
Description: Indoor commercial entertainment land uses include all land uses which provide entertainment services primarily within an enclosed building. Outdoor seating or patio areas associated with a proposed indoor commercial entertainment land use shall be allowed subject to city approval of a site plan showing any such proposed outdoor seating or patio area. Such activities often have operating hours which extend significantly later than most other commercial land uses. Examples of such land uses include restaurants, taverns, theaters, health or fitness centers, all forms of training studios (dance, art, martial arts, etc.), bowling alleys, arcades, roller rinks, and pool halls.
1.
Regulations:
a.
If located on the same side of the building as abutting residentially zoned property, no customer entrance of any kind shall be permitted within 150 feet, or as far as possible, of a residentially zoned property.
b.
Facility shall provide bufferyard with minimum opacity of .60 along all borders of the property abutting residentially zoned property (see section 78-610).
2.
Parking requirements: One space per every three patron seats or lockers (whichever is greater); or one space per three persons at the maximum capacity of the establishment; (whichever is greater).
(i)
Outdoor commercial entertainment.
Description: Outdoor commercial entertainment land uses include all land uses which provide entertainment services partially or wholly outside of an enclosed building. Such activities often have the potential to be associated with nuisances related to noise, lighting, dust, trash and late operating hours. Examples of such land uses include outdoor commercial swimming pools, driving ranges, miniature golf facilities, amusement parks, drive-in theaters, go-cart tracks, and racetracks.
1.
Regulations:
a.
Activity areas shall not be located closer than 300 feet to a residentially zoned property.
b.
Facility shall provide bufferyard with minimum opacity of .80 along all borders of the property abutting residentially zoned property (section 78-610).
c.
Activity areas (including drive-in movie screens) shall not be visible from any residentially-zoned property.
2.
Parking requirements: One space for every three persons at the maximum capacity of the establishment.
(j)
Commercial animal boarding.
Description: Commercial animal boarding facility land uses include land uses which provide short-term and/or long-term boarding for animals. An example of this land use is a commercial kennel. Exercise yards, fields, training areas, and trails associated with such land uses are considered accessory to such land uses and do not require separate consideration.
1.
Regulations:
a.
Each unsupervised animal shall be provided with their own indoor containment area. For supervised animals, a minimum of one containment area or five percent of all animals shall be provided a containment area, whichever is greater.
b.
Special events such as shows, exhibitions, and contests shall only be permitted when a temporary use permit has been secured. (See Section 78-906.)
2.
Parking requirements: One space per every 1,000 square feet of gross floor area.
(k)
Commercial indoor lodging.
Description: Commercial indoor lodging facilities include land uses which provide overnight housing in individual rooms or suites of rooms, each room or suite having a private bathroom. Such land uses may provide in-room or in-suite kitchens, and may also provide indoor recreational facilities for the exclusive use of their customers. Restaurant, arcades, fitness centers, and other on-site facilities available to non-lodgers are not considered accessory uses and therefore require review as a separate land use.
1.
Regulations:
a.
If located on the same side of a building as abutting residentially zoned property, no customer entrance of any kind shall be permitted within 100 feet of a residentially zoned property.
b.
Facility shall provide a bufferyard with a minimum opacity of .60 along all property borders abutting residentially zoned property (see section 78-610).
c.
Within the PO District, each and every room must take primary access via an individual interior door, and may not be accessed via an external balcony, porch or deck, except for emergency purposes.
2.
Parking requirements: One space per bedroom, plus one space for each employee on the largest work shift.
(l)
Bed and breakfast establishment.
Description: Bed and breakfast establishments are exclusively indoor lodging facilities which provide meals only to paying lodgers. Such land uses may provide indoor recreational facilities for the exclusive use of their customers.
1.
Regulations:
a.
If alcoholic beverages of any kind are to be served on the premises, the owner of the establishment shall first obtain the appropriate license in accordance with city and state regulations.
b.
Each such establishment shall be inspected to verify that the land use meets all applicable regulations.
c.
One sign, with a maximum area of 20 square feet and a maximum height of 6 feet, shall be permitted on the property.
d.
No premises shall be utilized for a bed and breakfast operation unless there are at least two exits to the outdoors from such premises. Rooms utilized for sleeping shall have a minimum size of 100 square feet for two occupants with an additional 30 square feet for each additional occupant to a maximum of four occupants per room. Each sleeping room used for the bed and breakfast operation shall have a separate operational smoke detector alarm, as required in the building code. One lavatory and bathing facility shall be required for every ten occupants, in addition to the owner/occupants personal facilities.
e.
The dwelling unit in which the bed and breakfast takes place shall be the principal residence of the operator/owner and said operator/owner shall live on the premises when the bed and breakfast operation is active.
f.
Only the meal of breakfast shall be served to overnight guests.
g.
The maximum stay for any occupants of bed and breakfast operations shall be 14 days.
h.
It shall be unlawful for any persons to operate a bed and breakfast operation as defined and as permitted in the Municipal Code of the City of Stoughton without first having obtained a conditional use permit.
i.
Application requirements. Applicants for a conditional use permit to operate a bed and breakfast shall submit a floor plan of the single-family dwelling unit illustrating that the proposed operation will comply with the city zoning ordinance as amended, other applicable city codes and ordinances, and within the terms of this chapter.
j.
Public nuisance violations. Bed and breakfast operations shall not be permitted whenever the operation endangers, or offends, or interferes with the safety or rights of others so as to constitute a nuisance.
2.
Parking requirements: One space per each bedroom in addition to requirements for principal residents.
(m)
Group day care center (nine or more children).
Description: Group day care centers are land uses in which qualified persons provide child care services for nine or more children. Examples of such land uses include day care centers and nursery schools. Such land uses shall not be located within a residential building. Such land uses may be operated on a for-profit or a not for profit basis. Such land uses may be operated in conjunction with another principal land use on the same environs, such as a church, school, business, or civic organization. In such instances, group day care centers are not considered as accessory uses and therefore require review as a separate land use.
1.
Regulations:
a.
Facility shall provide a bufferyard with a minimum opacity of .50 along all property borders abutting residentially zoned property (see section 78-610).
b.
Property owner's permission is required as part of the conditional use permit application.
2.
Parking requirements: One space per five students, plus one space for each employee on the largest work shift.
(n)
Campground.
Description: Campgrounds include any facilities designed for overnight accommodation of persons in tents, travel trailers, or other mobile or portable shelters or vehicles.
1.
Regulations:
a.
Facility shall provide a bufferyard with a minimum opacity of .70 along all property borders abutting residentially zoned property (see section 78-610).
2.
Parking requirements: One and one-half spaces per campsite.
(o)
Boarding house.
Description: Boarding homes include any residential use renting rooms which do not contain private bathroom facilities (with the exception of approved bed and breakfast facilities).
1.
Regulations:
a.
Facility shall provide a bufferyard with a minimum opacity of .60 along all property borders abutting residentially zoned property (see Section 78-610).
b.
Shall provide a minimum of one on-site parking space for each room for rent.
c.
Shall be located in an area of transition from residential land uses to nonresidential land uses.
d.
Shall comply with section 78-905, applicable to all conditional uses.
2.
Parking requirements: One space per room for rent, plus one space per each employee on the largest work shift.
(p)
Sexually-oriented land uses.
Description: Sexually-oriented land uses include any facility oriented to the display of sexually-oriented materials such as videos, movies, slides, photos, books, or magazines; or actual persons displaying and/or touching sexually specified areas — including the provision of body piercing or tattooing services to "sexually specified areas." For the purpose of this chapter, "sexually specified areas" includes any one or more of the following: genitals, anal area, female areola or nipple; and "sexually-oriented material" includes any media which displays sexually specified area(s). Establishments which sell or rent sexually-oriented materials shall not be considered sexually-oriented if the area devoted to sale of said materials is less than five percent of the sales area devoted to non-sexually-oriented materials and if such materials are placed in generic covers or otherwise obscured areas.
NOTE: The incorporation of this subsection into this chapter is designed to reflect the common council's official finding that sexually-oriented commercial uses have a predominant tendency to produce certain undesirable secondary effects on the surrounding community, as has been demonstrated in other, similar jurisdictions. Specifically, the common council is concerned with the potential for such uses to limit: the attractiveness of nearby locations for new development, the ability to attract and/or retain customers, and the ability to market and sell nearby properties at a level consistent with similar properties not located near such facilities. It is explicitly not the intent of this Subsection to suppress free expression by unreasonably limiting alternative avenues of communication, but rather to balance the need to protect free expression opportunities with the need to implement the city's Comprehensive Plan and protect the character and integrity of its commercial and residential neighborhoods.
1.
Regulations:
a.
Shall be located a minimum of 1,000 feet from any agriculturally zoned property or residentially zoned property; and shall be located a minimum of 1,000 feet from any school, church, or outdoor recreational facility.
b.
Exterior building appearance and signage shall be designed to ensure that the use does not detract from the ability of businesses in the vicinity to attract customers, nor affect the marketability of properties in the vicinity for sale at their assessed values.
2.
Parking requirements: One space per 300 square feet of gross floor area, or one space per person at the maximum capacity of the establishment (whichever is greater).
(q)
Vehicle repair and maintenance service.
Description: Vehicle repair and maintenance services include all land uses which perform maintenance services (including repair) to motorized vehicles and contain all operations (except vehicle storage) entirely within an enclosed building.
1.
Regulations:
a.
Storage of abandoned vehicles is prohibited.
b.
Facility shall provide a bufferyard with a minimum opacity of .60 along all property borders abutting residentially zoned property (section 78-610).
2.
Parking requirements: One space per 300 square feet of gross floor area. Adequate on-site parking is required for all customer and employee vehicles.
(r)
Artisan studios and artisan production shops.
Description: A building or portion thereof used for the preparation, display and sale of individually crafted artwork, jewelry, furniture, sculpture, pottery, leathercraft, hand-woven articles, and related items, as either a principal use or accessory use. A studio is used by no more than three artists or artisans. An artisan production shop is an artisan studio used by more than three artists or artisans.
1.
Regulations:
a.
Facility shall provide a bufferyard with a minimum opacity of .20 along all property borders abutting residentially zoned property (section 78-610).
2.
Parking requirements: One space per 300 square feet of gross floor area. Adequate on-site parking is required for all customer and employee vehicles. Not applicable in the CB—Central Business district.
(5)
Storage or disposal land uses.
(a)
Indoor storage or wholesaling.
Description: Indoor storage and wholesaling land uses are primarily oriented to the receiving, holding, and shipping of packaged materials for a single business or a single group of businesses. With the exception of loading and parking facilities, such land uses are contained entirely within an enclosed building. Examples of this land use include conventional warehouse facilities, long-term indoor storage facilities, and joint warehouse and storage facilities. Retail outlets associated with this use shall be considered accessory uses per subsection 78-206(8)(h), below.
1.
Parking requirements: One space per 2,000 sf of gross floor area.
(b)
Outdoor storage or wholesaling.
Description: Outdoor storage and wholesaling land uses are primarily oriented to the receiving, holding, and shipping of packaged materials for a single business or a single group of businesses. Such a land use, in which any activity beyond loading and parking is located outdoors, is considered an outdoor storage and wholesaling land use. Examples of this land use include contractors' storage yards, equipment yards, lumber yards, coal yards, landscaping materials yard, construction materials yards, and shipping materials yards. Such land uses do not include the storage of inoperative vehicles or equipment, or other materials typically associated with a junkyard or salvage yard. (See subsection (5)(d).
1.
Regulations:
a.
All outdoor storage areas shall be completely enclosed by any permitted combination of buildings, structures, walls and fencing. Such walls and fencing shall be a minimum of eight feet in height and shall be designed to completely screen all stored materials from view from non-industrialized areas at an elevation of five feet above the grade of all adjacent properties and rights-of-way. Said walls or fencing shall be screened from residentially zoned property by a bufferyard with a minimum opacity of .80.
b.
The storage of items shall not be permitted in permanently protected green space areas (see section 78-608).
c.
The storage of items shall not be permitted in required frontage landscaping or bufferyard areas.
d.
In no event shall the storage of items reduce or inhibit the use or number of parking stalls provided on the property below the requirement established by the provisions of section 78-704. If the number of provided parking stalls on the property is already less than the requirement, such storage area shall not further reduce the number of parking stalls already present.
e.
Storage areas shall be separated from any vehicular parking or circulation area by a minimum of ten feet. This separation shall be clearly delimited by a physical separation such as a greenway, curb, fence, or line of planters, or by a clearly marked paved area.
f.
Materials being stored shall not interfere in any manner with either on-site or off-site traffic visibility, including potential traffic/traffic and traffic/pedestrian conflicts.
g.
Inoperative vehicles or equipment, or other items typically stored in a junkyard or salvage yard, shall not be stored under the provisions of this land use.
h.
Facility shall provide a bufferyard with a minimum opacity of .60 along all property borders abutting residentially zoned property (see section 78-610).
i.
All outdoor storage areas shall be located no closer to a residentially zoned property than the required minimum setback for buildings on the subject property.
2.
Parking requirements: One space for every 10,000 square feet of gross storage area, plus one space per each employee on the largest work shift.
(c)
Personal storage facility.
Description: Personal storage facilities are land uses oriented to the indoor storage of items entirely within partitioned buildings having an individual access to each partitioned area. Such storage areas may be available on either a condominium or rental basis. Also known as "mini-warehouses".
1.
Regulations:
a.
Facility shall be designed so as to minimize adverse visual impacts on nearby developments. The color, exterior materials, and orientation of proposed buildings and structures shall complement surrounding development.
b.
Facility shall provide a bufferyard with a minimum opacity of .80 along all property borders abutting residentially zoned property (see section 78-610).
c.
Shall comply with section 78-905, standards and procedures applicable to all conditional uses.
d.
No electrical power shall be run to the storage facilities, except for exterior lighting.
2.
Parking requirements: One space for each employee on the largest work shift.
(d)
Junkyard or salvage yard.
Description: Junkyard or salvage yard facilities are any land or structure used for a salvaging operation including but not limited to: the above-ground, outdoor storage and/or sale of waste paper, rags, scrap metal, and any other discarded materials intended for sale or recycling; and/or the collection, dismantlement, storage, or salvage of two or more unlicensed and/or inoperative vehicles. Recycling facilities involving on-site outdoor storage of salvage materials are included in this land use.
1.
Regulations:
a.
Facility shall provide a bufferyard with a minimum opacity of 1.00 along all property borders abutting residentially zoned property (see section 78-610).
b.
All buildings, structures, outdoor storage areas, and any other activity areas shall be located a minimum of 100 feet from all lot lines.
c.
In no instance shall activity areas be located within a required frontage landscaping or bufferyard areas.
d.
Shall not involve the storage, handling or collection of hazardous materials, including any of the materials listed in section 78-717.
2.
Parking requirements: One space for every 20,000 square feet of gross storage area, plus one space for each employee on the largest work shift.
(e)
Waste disposal facility.
Description: Waste disposal facilities are any areas used for the disposal of solid wastes including those defined by Wisconsin Statutes 289.01(33), but not including composting operations (see subsection (f), below).
1.
Regulations:
a.
Shall comply with all county, state and federal regulations.
b.
Facility shall provide a bufferyard with a minimum opacity of 1.00 along all borders of the property (see section 78-610).
c.
All buildings, structures, and activity areas shall be located a minimum of 300 feet from all lot lines.
d.
Operations shall not involve the on-site holding, storage or disposal of hazardous materials (as defined by section 78-717) in any manner.
e.
Required site plans shall include detailed site restoration plans, which shall include at minimum, detailed grading and revegetation plans, and a detailed written statement indicating the timetable for such restoration. A surety bond, in an amount equivalent to 110 percent of the costs determined to be associated with said restoration (as determined by a third party selected by the city), shall be filed with the city by the petitioner (subject to approval by the city administrator), and shall be held by the city for the purpose of ensuring that the site is restored to its proposed condition. (The requirement for said surety is waived for waste disposal facilities owned by public agencies.)
2.
Parking requirements: One space for each employee on the largest work shift.
(f)
Composting operation.
Description: Composting operations are any land uses devoted to the collection, storage, processing and or disposal of vegetation.
1.
Regulations:
a.
Shall comply with all county, state and federal regulations.
b.
Facility shall provide a bufferyard with a minimum opacity of 1.00 along all borders of the property occupied by non-agricultural land uses (see section 78-610).
c.
All buildings, structures, and activity areas shall be located a minimum of 100 feet from all lot lines.
d.
No food scraps or other vermin-attracting materials shall be processed, stored or disposed of on-site.
e.
Operations shall not involve the on-site holding, storage or disposal of hazardous wastes as defined by state statutes in any manner.
2.
Parking requirements: One space for each employee on the largest work shift.
(6)
Transportation land uses.
(a)
Off-site parking lot.
Description: Off-site parking lots are any areas used for the temporary parking of vehicles which are fully registered, licensed and operative. See also section 78-704 for additional parking regulations.
1.
Regulations:
a.
Access and vehicular circulation shall be designed so as to discourage cut-through traffic.
(b)
Airport/heliport.
Description: Airports and heliports are transportation facilities providing takeoff, landing, servicing, storage and other services to any type of air transportation. The operation of any type of air vehicle (including ultralight aircraft, hang gliders, parasails, and related equipment, but excepting model aircraft) within the jurisdiction of this chapter shall occur only in conjunction with an approved airport or heliport.
1.
Regulations:
a.
All buildings, structures, outdoor airplane or helicopter storage areas, and any other activity areas shall be located a minimum of 100 feet from all lot lines.
b.
Facility shall provide a bufferyard with a minimum opacity of 1.00 along all borders of the property not otherwise completely screened from activity areas by buildings or structures (see section 78-610).
2.
Parking requirements: One space per each employee on the largest work shift, plus one space per every five passengers based on average daily ridership.
(c)
Freight terminal.
Description: Freight terminals are defined as land and buildings representing either end of one or more truck carrier line(s) which may have some or all of the following facilities: yards, docks, management offices, storage sheds, buildings and/or outdoor storage areas, freight stations, and truck maintenance and repair facilities, principally serving several or many businesses and always requiring trans-shipment.
1.
Regulations:
a.
Facility shall provide a bufferyard with a minimum opacity of 1.00 along all property borders abutting residentially zoned property (see section 78-610).
b.
All buildings, structures, outdoor storage areas, and any other activity areas shall be located a minimum of 100 feet from all lot lines abutting residentially zoned property.
c.
In no instance shall activity areas be located within a required frontage landscaping or bufferyard areas.
2.
Parking requirements: One space per each employee on the largest work shift.
(d)
Distribution center.
Description: Distribution centers are facilities oriented to the short-term indoor storage and possible repackaging and reshipment of materials involving the activities and products of a single user. Retail outlets associated with this use shall be considered accessory uses per subsection 78-206(8)(h), below.
1.
Regulations:
a.
Facility shall provide a bufferyard with a minimum opacity of 1.00 along all property borders abutting residentially zoned property (see section 78-610).
b.
All buildings, structures, outdoor storage areas, and any other activity areas shall be located a minimum of 100 feet from all lot lines abutting residentially zoned property.
c.
In no instance shall activity areas be located within a required frontage landscaping or bufferyard areas.
2.
Parking requirements: One space per each employee on the largest work shift.
(7)
Industrial land uses.
(a)
Light industrial land use.
Description: Light industrial land uses are industrial facilities at which all operations (with the exception of loading operations): 1) are conducted entirely within an enclosed building; 2) are not potentially associated with nuisances such as odor, noise, heat, vibration and radiation which are detectable at the property line; 3) do not pose a significant safety hazard (such as danger of explosion); and 4) comply with all of the performance standards listed for potential nuisances in article VII. Alcoholic beverage production qualifies as a light industrial use, but only when conducted incidental to indoor sales or service pursuant to subsection (8)(i), below. Light industrial land uses may conduct retail sales activity as an accessory use provided that the requirements of subsection (8)(h), below, are complied with.
1.
Regulations:
a.
All activities, except loading and unloading, shall be conducted entirely within the confines of a building.
2.
Parking requirements: One space per each employee on the largest work shift.
(b)
Heavy industrial land use.
Description: Heavy industrial land uses are industrial facilities which do not comply with one or more of the following criteria: 1) are conducted entirely within an enclosed building; 2) are not potentially associated with nuisances such as odor, noise, heat, vibration, and radiation which are detectable at the property line; and 3) do not pose a significant safety hazard (such as danger of explosion). More specifically, heavy industrial land uses are industrial land uses which may be wholly or partially located outside of an enclosed building; may have the potential to create certain nuisances which are detectable at the property line; and may involve materials which pose a significant safety hazard. However, in no instance shall a heavy industrial land use exceed the performance standards listed in article VII. Examples of heavy industrial land uses include meat product producers; alcoholic beverage producers; paper, pulp or paperboard producers; chemical and allied product producers (except drug producers) including poison or fertilizer producers; petroleum and coal product producers; asphalt, concrete or cement producers; tanneries; stone, clay or glass product producers; primary metal producers; heavy machinery producers; electrical distribution equipment producers; electrical industrial apparatus producers; transportation vehicle producers; commercial sanitary sewage treatment plants; railroad switching yards; and recycling facilities not involving the on-site storage of salvage materials.
1.
Regulations:
a.
Facility shall provide a bufferyard with a minimum opacity of 1.00 along all borders of the property other than permanent open space abutting properties which are not zoned Heavy Industrial (see section 78-610).
b.
All outdoor activity areas shall be located a minimum of 100 feet from residentially zoned property. No materials shall be stacked or otherwise stored so as to be visible over bufferyard screening elements.
2.
Parking requirements: One space per each employee on the largest work shift.
(c)
In zoning districts where single-family uses are permitted principal uses, or on parcels adjacent to a parcel where single-family uses are permitted principal uses, the setback requirement for a mobile service support structure shall be equal to the height of the mobile service support structure.
(d)
Extraction use.
Description: Extraction uses include and land uses involving the removal of soil, clay, sand, gravel, rock, minerals, peat, or other material in excess of that required for approved on-site development or agricultural activities.
1.
Regulations:
a.
Shall receive approval from the county prior to action by the City of Stoughton, and shall comply with all county, state and federal regulations.
b.
Facility shall provide a bufferyard with a minimum opacity of 1.00 along all borders of the property other than permanent open space (see section 78-610).
c.
All buildings, structures, and activity areas shall be located a minimum of 300 feet from all lot lines.
d.
Required site plans shall include detailed site restoration plans, which shall include at minimum, detailed grading and revegetation plans, and a detailed written statement indicating the timetable for such restoration. A surety bond, in an amount equivalent to 110 percent of the costs determined to be associated with said restoration (as determined by a third party selected by the city), shall be filed with the city by the petitioner (subject to approval by the zoning administrator), and shall be held by the city for the purpose of ensuring that the site is restored to its proposed condition. (The requirement for said surety is waived for publicly-owned waste disposal facilities.)
2.
Parking requirements: One space per each employee on the largest work shift.
(8)
Accessory land uses and structures. Accessory uses and structures shall be incidental to the principal activity conducted on the subject property. Only those accessory uses and structures listed below shall be permitted within the jurisdiction of this chapter. With the exception of a commercial apartment (see (a), below), or a farm residence (see (b), below), in no instance shall an accessory use, cellar, basement, tent or recreational trailer be used as a residence. With the exception of farm buildings, accessory buildings located within a residential district shall be constructed or finished in a complimentary architectural style and with complimentary materials to the principal residential buildings in the neighborhood. Accessory structures shall not be located between a principal building and a street frontage on the same lot, nor within any required front yard or street side yard, except when there is a shoreyard. In instances where there is a shoreyard, shoreyards shall be treated as front yards and street yards as rear yards, whereby accessory structures may be located between a principal building and a street frontage on the same lot. Garden and landscape features such as walks, steps, terraces, trellises, arbors, bird feeders/baths, swing sets, sandboxes, compost storage, sprinkler systems, landscape battery operated lighting, clothes lines, and similar features are exempt from zoning and permitting requirements except these features may not be placed within an easement designed to convey electric, water, wastewater or stormwater and shall be setback a minimum of four feet from any private property line. Additionally, these features must not exceed one-half the maximum height requirement for an accessory structure for the specific district where located and shall not exceed 200 square feet in area. Stand alone, roofed structures such as a gazebo or shed, and structures such as a pergola that are attached to a principal structure or any other accessory structure shall meet all zoning and permitting requirements.
(a)
Upper story dwelling unit.
Description: Upper story dwelling units are dwelling units which are located directly above the ground floor of a building used for an office, commercial, or institutional land use (as designated in subsection (4), above). Residential uses will be permitted on the ground floor of a building used for an office, commercial, or institutional land use, but may not be within the first 24 feet of the ground floor measured from the front of the building.
1.
Regulations:
a.
The gross floor area devoted to commercial apartments shall be counted toward the floor area of a nonresidential development.
b.
A minimum of one off-street parking space shall be provided for each bedroom within a commercial apartment. Parking spaces provided by nonresidential land uses on the site may be counted for this requirement with the approval of the zoning administrator.
(b)
Farm residence.
Description: A farm residence is a single-family detached dwelling unit located on the same property as any of the principal agricultural land uses listed in Subsection (2), above.
(c)
Detached residential garage, carport, utility shed; gazebo and similar accessory structures.
Description: A detached private residential garage or carport is a structure used primarily to shelter parked passenger vehicles. A utility shed is a structure used primarily to store residential maintenance equipment of the subject property. A gazebo is a small roofed structure that is used for outdoor entertaining, relaxing and dining. A greenhouse shall be considered an accessory structure. See section 78-408 for requirements applicable to legal, nonconforming garages. Garages, carports, utility sheds; gazebos and similar structures in excess of 900 square feet of gross floor area are not permitted in residential districts except as conditional uses in the MR, RH and ER-1 districts (also see subsection 78-206(8)).
1.
Regulations:
a.
One detached residential garage, and two other accessory structures, shall be permitted by right.
b.
A conditional use permit is required for:
A.
A combination of accessory structures exceeding a total of 1,000 square feet; or
B.
More than three accessory structures.
c.
A greenhouse shall be limited to 120 square feet and shall not be used for storage.
(d)
Company cafeteria.
Description: A company cafeteria is a food service operation which provides food only to company employees and their guests, which meets state food service requirements, and is located on the same property as a principal land use engaged in an operation other than food service.
(e)
Company provided on-site recreation.
Description: A company provided on-site recreational facility is any active or passive recreational facility located on the same site as a principal land use, and which is reserved solely for the use of company employees and their guests.
1.
Regulations:
a.
All structures and actively used outdoor areas shall be located a minimum of 50 feet from any residentially zoned property.
b.
Outdoor recreation facilities using night lighting and adjoining a residentially zoned property shall install and continually maintain a bufferyard with a minimum opacity of 0.60 (see section 78-610). Said bufferyard shall be located at the property line adjacent to said residentially zoned property.
c.
Facilities using night lighting shall require a conditional use permit.
(f)
Outdoor display incidental to indoor sales and service (more than 12 days).
Description: See subsection 78-206(4)(d).
1.
Regulations:
a.
Shall comply with all conditions of subsection 78-206(4)(d).
b.
Display area shall not exceed 25 percent of gross floor area of principal building on the site.
(g)
In-vehicle sales and services incidental to on-site principal land use.
Description: See subsection 78-206(4)(g).
1.
Regulations:
a.
Shall comply with all conditions of subsection 78-206(4)(g).
(h)
Indoor sales incidental to storage or light industrial land use.
Description: These land uses include any retail sales activity conducted exclusively indoors which is incidental to a principal land use such as warehousing, wholesaling or any light industrial land use, on the same site.
1.
Regulations:
a.
Adequate parking, per the requirements of section 78-704, shall be provided for customers. Said parking shall be in addition to that required for customary light industrial activities.
b.
The total area devoted to sales activity shall not exceed 25 percent of the total area of the buildings on the property. Areas devoted to artisan studio uses such as custom ceramics, glass, wood, paper, fabric, and similar crafts may exceed 5,000 square feet with the granting of a conditional use permit for such use.
c.
Shall provide restroom facilities directly accessible from retail sales area.
d.
Retail sales shall be physically separated by a wall from other activity areas.
(i)
Light industrial activities incidental to indoor sales or service land use.
Description: These land uses include any light industrial activity conducted exclusively indoors which is incidental to a principal land use such as indoor sales or service, on the same site.
1.
Regulations:
a.
The total area devoted to light industrial activity shall not exceed 15 percent of the total area of the buildings on the property, or 5,000 square feet, whichever is less.
b.
Production area shall be physically separated by a wall from other activity areas and shall be soundproofed to the level required by section 78-709 for all adjacent properties.
(j)
Home occupation.
Description: It is the intent of this section to provide a means to accommodate a small home-based family or professional business without the necessity of a rezoning from a residential to a business district. Approval of an expansion of a home occupation at a future time beyond the limitations of this section is not to be anticipated; relocation of the business to an area that is appropriately zoned may be necessary. Home occupations are economic activities performed within any single-family detached residence which comply with the following requirements. Examples include personal and professional services, and handicrafts, which comply with all of the following requirements:
1.
Regulations:
a.
The use is to be clearly incidental to residential use.
b.
The area used to conduct the home occupation shall not exceed 25 percent of the improved square footage, excluding the garage, and the occupation shall be conducted within the principal building, except for sales of home grown produce grown on site.
c.
Any home occupation shall be carried on only by a member of the immediate family residing on the premises.
d.
No activity, materials, goods or equipment incidental to the home occupation shall be externally visible, except for home grown produce grown on site.
e.
No home occupation shall endanger the public health and safety and shall not interfere with other parcels in the neighborhood.
f.
No mechanical equipment may be used which creates a disturbance such as noise, dust, odor or electrical disturbance.
g.
No articles shall be sold or offered for sale on the premises, except for home grown produce grown on site.
h.
No mechanical or electrical equipment shall be installed or maintained other than such as customarily incidental to domestic use.
i.
There shall be no more than one temporary sign permitted per dwelling unit for sales of home grown produce grown on site. No such sign shall exceed four square feet in area, two feet in height or two feet in width and shall be placed on private property where the produce is grown. The sign shall only be visible when the produce is offered for sale.
j.
For this section, "Produce" shall be defined as: To grow agricultural products such as vegetables and fruit on site.
k.
This section does not apply to other permitted or conditional uses in residential districts.
l.
Only one sign for professional services shall be allowed. Such sign shall not be illuminated and shall not exceed three square feet.
(k)
Family day care home (four to eight children).
Description: Family day care homes are occupied residences in which a qualified person or persons provide child care for four to eight children. The care of less than four children is not subject to the regulations of this chapter.
State Law reference— Section 66.1017(1)(a), Wisconsin Statutes.
(l)
Intermediate day care home (nine to 15 children).
Description: Intermediate day care homes are occupied residences in which a qualified person or persons provide child care for nine to fifteen children.
State Law reference— Section 48.65, Wisconsin Statutes.
(m)
Migrant labor camp. Migrant labor camps include any facility subject to the regulation of Wisconsin Statutes 103.90(3)(a).
1.
Regulations:
a.
Shall be surrounded by a bufferyard with a minimum opacity of .60 along all property lines adjacent to all properties in residential, office, or business zoning districts (see section 78-610).
b.
Migrant labor camp shall be an accessory use to an active principal use, under the same ownership, which is located within the city.
(n)
On-site parking lot.
Description: On-site parking lots are any areas located on the same site as the principal land use which are used for the temporary parking of vehicles which are fully registered, licensed, and operative. Refer also to section 78-704.
1.
Regulations:
a.
Access and vehicular circulation shall be designed so as to discourage cut-through traffic.
(o)
Private residential recreational facility.
Description: This land use includes all active outdoor recreational facilities located on a private residential lot which are not otherwise listed in the Table of Land Uses in the Appendix. Materials and lighting shall limit light levels at said property line are to be equal to or less than 0.5 footcandles (see section 78-707). All private residential recreation facilities and their attendant structures shall comply with the bulk requirements for accessory structures. (See article IV.) Common examples of these accessory uses include tree houses, basketball courts, tennis courts, and swimming pools.
1.
Regulations:
a.
Swimming pools shall be regulated by the performance standards provided in section 78-723.
b.
Treehouses and similar platforms shall not exceed a platform height of eight feet and shall be setback twice their elevation from any property line.
(p)
Private residential kennel.
Description: A maximum of any combination of three dogs and/or cats (over six months of age) are permitted by right for any one residential unit. Any residence housing more dogs and/or cats in any combination shall be considered a private residential kennel. In addition to those requirements, a private residential kennel shall meet the following requirements:
1.
Regulations: [None at this time.]
(q)
Private residential stable.
Description: A private residential stable is a structure facilitating the keeping of horses (or similar animals) on the same site as a residential dwelling.
1.
Regulations:
a.
A minimum lot area of 175,000 square feet (four acres) is required for a private residential stable.
b.
A maximum of one horse per two acres of fully enclosed (by fencing and/or structures) area is permitted.
c.
Outdoor containments for animals shall be located a minimum of 25 feet from any residentially zoned property.
d.
The minimum permitted size of horse or similar animal stall shall be 100 square feet.
(r)
Drainage structure.
Description: These include all improvements including, but not limited to swales, ditches, culverts, drains, tiles, gutters, levees, basins, detention or retention facilities, impoundments, and dams intended to effect the direction, rate and/or volume of stormwater runoff, snow melt, and/or channelized flows across, within and/or away from a site.
1.
Regulations:
a.
Shall be consistent with subsection 78-206(11) for the placement of drainage structures in permanently protected green space areas.
b.
All drainage improvements shall comply with the City of Stoughton's Stormwater Regulations.
(s)
Filling.
Description: Filling includes any activity in an area over 4,000 square feet, or greater than 500 cubic yards of fill, involving the modification of the earth's surface above that in its undisturbed state.
1.
Regulations:
a.
Shall comply with subsection 78-206(11)(i) regarding filling activities in permanently protected green space areas.
b.
Shall comply with article V regarding protection measures for natural resources.
c.
Shall not create drainage onto other properties.
d.
Shall not impede on-site drainage.
e.
Shall comply with provisions of the Land Division Ordinance.
(t)
Lawn care.
Description: Lawn care includes any activity involving the preparation of the ground, installation and maintenance of vegetative ground cover (including gardens) which complies with the City of Stoughton Code of Ordinances. Lawn care is not permitted in certain permanently protected green space areas, see subsection 78-706(11).
(u)
Individual septic disposal system.
Description: This land use includes any state-enabled, county-approved septic disposal system.
1.
Regulations:
a.
Minimum lot size of 0.5 acres.
b.
Shall comply with article V regarding protection measures for natural resources.
(v)
Exterior communication devices.
Description: This land use includes any structures used for communication reception.
1.
Regulations:
a.
No exterior communication device shall be erected or installed within the front yard or side yard. The rear setback and the side setback in rear yards shall be that for the principal structure within the respective zoning district. The exact location of the device shall be subject to approval by the zoning administrator. Exterior communication devices shall not be erected within front yards.
b.
No exterior communication device shall exceed a height of 20 feet above the roofline of the building on the property upon which the antenna is located or 60 feet above the ground measured at grade level, whichever is less.
c.
Exterior communication devices shall be erected and installed in accordance with the state electrical code adopted by reference in section 10-31 et seq., National Electrical Safety Code, Federal Communications Commission and the instructions of the manufacturer. In cases of conflict, the stricter requirements shall govern.
(w)
Caretaker's residence.
Description: This land use includes any residential unit which provides permanent housing for a caretaker of the subject property in either an attached or detached configuration.
1.
Regulations:
a.
Shall provide housing only for on-site caretaker and family.
(x)
In-family suite.
Description: The in-family suite is an area within a dwelling unit that may contain separate kitchen, dining, bathroom, laundry, living, sleeping, and recreation areas, including exterior porches, patios, and decks. In addition to the required internal physical connection, separate outdoor access or separate access to the garage may be provided. However, external stairs serving as the primary access to the in-family suite are prohibited.
1.
Regulations:
a.
The dwelling unit and the in-family suite shall together appear as a single-family dwelling. A separate walled garage area or driveway is not permitted
b.
A separate address for the in-family suite is not permitted.
c.
A separate utility connection or meters are not permitted.
d.
A physical all-weather connection between the main living area and the in-family suite must be present. This required connection may not occur through an attic, basement, garage, porch, or other non-living area. A door may be used to separate the in-family suite from the rest of the dwelling unit, but may not be locking, except that a locking door may be used for the bedroom and bathroom doors of the in-family suite.
e.
The in-family suites may not be occupied by a non-family member.
f.
In-family suites should be considered and regulated as part of a single-family dwelling unit.
g.
When an application is submitted for a building permit to accommodate what is explicitly listed as, or could possibly serve as, an in-family suite, the building plan shall be marked as "Not a separate dwelling unit nor apartment," and a signed letter from the applicant stating agreement with this condition shall be filed.
(y)
Keeping of chickens.
Description: A maximum of six hen chickens (no roosters) are allowed by right on residentially zoned property with a single-family, duplex or twin home residential unit. Additionally, the keeping of chickens shall be allowed for group daycares, schools and church uses within the planned business and institutional zoning districts. The following requirements shall also apply to the keeping of chickens:
1.
Regulations:
a.
No chicken coop or run area shall be closer than 25 feet to any residential home on an adjacent lot and the coop and run area shall only be located within the rear yard and/or side yard.
b.
Chicken coops that are less than 65 square feet in area are exempt from a zoning permit and fee.
c.
Chicken coops must conform to the accessory structure requirements of the specific zoning district where located.
d.
Any electrical work requires an electrical permit through the department of planning and development.
e.
Chickens shall be kept within the coop or run area at all times. The run area shall include an area fenced with materials to sufficiently contain chickens. A zoning permit and fee are required for fencing an area over 100 square feet. Fencing shall meet all zoning requirements.
f.
Selling of eggs is prohibited.
g.
Slaughtering of chickens is prohibited.
h.
The noise standards in section 6-5 of this Code must be adhered to.
i.
The public nuisances—noxious odors standards specified in section 58-8 of this Code must be adhered to.
j.
Proof of livestock premises registration with the Wisconsin Department of Agriculture, if necessary, must be provided upon request.
k.
Chickens shall be provided a covered enclosure for protection.
l.
Coops shall be a minimum of three square feet in area per hen chicken and run areas shall be a minimum of ten square feet in area per hen chicken.
(z)
Keeping of honey bees.
Description: The purpose of this section is to permit and to establish certain requirements for sound honey bee keeping practices, which are intended to avoid problems that may otherwise be associated with the keeping of bees in populated areas.
1.
Regulations:
a.
Definitions. As used in this section, the following words and terms shall have the following meanings unless the context of their usage clearly indicates another meaning:
A.
Apiary. The assembly of one or more colonies of bees at a single location.
B.
Beekeeper. A person who owns or has charge of one or more colonies of bees.
C.
Colony. An aggregate of bees consisting principally of workers, but having, when perfect, one queen and many drones, including brood, combs, honey and the hive inhabited by the bees.
D.
Hive. A structure intended for the housing of one bee colony. A single hive, including the attached honey supers, shall not exceed 20 cubic feet in size.
E.
Honey bee. All life stages of the common domestic honey bee, Apis Mellifera species.
G.
Parcel. A distinct or defined portion of land which is considered as a unit.
b.
Location and standards.
A.
All hives shall be located at least three feet from any property line. No hive shall be located within 25 feet of any dwelling, except that of the beekeeper.
B.
The entrance to any hive located closer than ten feet to any adjoining property line shall not face the nearest property line.
C.
In each instance in which a colony is situated within 25 feet of and the entrance faces that property line, a flyway barrier is required. This flyway barrier must: be at least six feet in height; consist of a solid wall, fence, dense vegetation or combination thereof; and be positioned to transect both legs of a triangle, extending from an apex at the hive to each end point of the part of the property line to be shielded.
D.
All honey bee colonies shall be kept in hives with movable frames, which shall be kept in sound and usable condition.
E.
A source of water shall be available to all honey bees kept by a beekeeper, on the same parcel on which the colony is located. The water shall be available at all times during the year when the honey bees are active, so that the honey bees will not congregate at swimming pools, pet watering bowls, bird baths or other water sources where they may cause human, bird or domestic pet contact.
F.
No bee comb or similar materials may be left upon the grounds of the apiary. Upon removal from the hive, all such materials shall promptly be disposed of within two weeks, in a sealed container, or placed within a building or other bee-proof enclosure.
G.
Whenever a colony exhibits unusually aggressive characteristics, such as stinging or attempting to sting without due provocation, or exhibits an unusual disposition toward swarming, the beekeeper shall promptly manage the colony to prevent swarming such as re-queen the colony with another queen or by other effective means. Queens shall be selected from European stock bred for gentleness and non-swarming characteristics.
H.
It shall be unlawful to keep more than the following number of colonies on any parcel within the city, based upon the size or configuration of the parcel on which the apiary is situated:
a.
One-half acre or less—two colonies.
b.
More than one-half acre but less than one acre—four colonies.
c.
One acre or larger—six colonies.
I.
Beekeeping activities conducted on property on which the principal use is residential shall be conducted in compliance with those home occupation standards in Section 78-206(8)(j) of this Code, excepting 78-206(8)(j)(1)(b) and (1)(d).
J.
Notwithstanding compliance with the various requirements of this chapter, it shall be unlawful for any beekeeper to keep any colony or colonies in such a manner, or of such disposition, as to cause any unhealthy condition, interfere with the normal use and enjoyment of human or animal life, or interfere with the normal use and enjoyment of any other property.
(9)
Temporary land uses.
(a)
General temporary outdoor sales.
Description: The temporary display and sale of any items, on private property and outside the confines of a building, that is not otherwise regulated by the City Municipal Code. Examples of this land use include but are not limited to: seasonal garden sales, fireworks sales, vegetable and fruit sales, and Christmas tree sales.
1.
Temporary use regulations:
a.
Prior to commencing any activities under this subsection, a site plan of the subject property must be approved by the zoning administrator. The site plan must specifically show where the temporary use will be located on the parcel and otherwise conform to all requirements of subsection 78-908(3)(c), except that an applicant may request approval from the zoning administrator to omit one or more requirements from the site plan. The zoning administrator may approve the omission of specific site plan requirements upon a determination that the information is not required for the evaluation of the temporary use application.
b.
The temporary use must be approved under section 78-906.
c.
If other than the property owner, the person seeking approval of the temporary use must obtain, and submit to the zoning administrator, written authorization from the property owner.
d.
A temporary use permit issued under this subsection shall be issued for a specified number of days, but no more than 180 consecutive days.
e.
The display and sale of items shall not be permitted in the public right-of-way nor in any required bufferyard or landscaped area.
f.
The temporary use shall not cause the amount of on-site parking for the existing uses on the lot or parcel to fall below the minimum amount required for the lot or parcel.
g.
The temporary use shall not impair traffic or pedestrian flow, nor shall it obstruct vision for intersecting streets, driveways, sidewalks or other traffic areas.
h.
The temporary use shall not be operated or offered through a drive- through facility.
i.
Notwithstanding subsection 78-803(1), a temporary use permit issued under this subsection authorizes temporary signage that complies with the requirements for temporary signs in subsection 78-811(3) without separate approval or additional fee.
j.
If the temporary use is located on property adjacent to residential property, sales and display activities shall be limited to daylight hours.
k.
The temporary use shall not use amplified music or other amplified sounds.
(b)
Outdoor assembly.
Description: Includes any organized outdoor assembly of more than 100 persons, such as an outdoor wedding or tent meetings
1.
Temporary use regulations:
a.
Activities shall not obstruct pedestrian or vehicular circulation, including vehicular sight distances.
b.
Signage shall comply with the requirements for temporary signs in subsection 78-811(3).
c.
Adequate parking, drinking water, and toilet facilities shall be provided, and shall be described in the application.
d.
If subject property is located adjacent to a residential area, activities shall be limited to daylight hours.
e.
Adequate provisions for crowd control shall be made, and shall be described within the application.
f.
Shall comply with section 78-906, standards and procedures applicable to all temporary uses.
(c)
Contractor's project office,
Description: Includes any structure containing an on-site construction management office for an active construction project.
1.
Temporary use regulations:
a.
Structure shall not exceed 2,000 square feet in gross floor area.
b.
Facility shall be removed within ten days of issuance of occupancy permit.
c.
Shall not be used for sales activity. (See subsection (9)(f), below.)
d.
Projects requiring land use to be in place for more than 365 days shall require a conditional use permit.
e.
Shall comply with section 78-906, standards and procedures applicable to all temporary uses.
(d)
Contractor's on-site equipment storage facility.
Description: Includes any structure or outdoor storage area designed for the on-site storage of construction equipment and/or materials for an active construction project.
1.
Temporary use regulations:
a.
Facility shall be removed within ten days of issuance of occupancy permit.
b.
Projects requiring land use to be in place for more than 365 days shall require a conditional use permit.
c.
Shall be limited to a maximum area not exceeding ten percent of the property's gross site area.
d.
Shall comply with section 78-906, standards and procedures applicable to all temporary uses.
(e)
Relocatable building.
Description: Includes any manufactured building which serves as a temporary building for less than six months. (Facilities serving for more than six months shall be considered conditional uses and subject to the general standards and procedures presented in section 78-905.)
1.
Temporary use regulations:
a.
Shall conform to all setback regulations.
b.
Shall conform to all building code regulations.
c.
Shall comply with section 78-906, standards and procedures applicable to all temporary uses.
(f)
On-site real estate sales office.
Description: Includes any building which serves as an on-site sales office for a development project.
1.
Temporary use regulations:
a.
Structure shall not exceed 5,000 square feet in gross floor area.
b.
Facility shall be removed or converted to a permitted land use within ten days of the completion of sales activity.
c.
Signage shall comply with the requirements for temporary signs in subsection 78-811(3).
d.
Projects requiring land use to be in place for more than 365 days shall require a conditional use permit.
e.
Shall comply with section 78-906, standards and procedures applicable to all temporary uses.
(g)
Reserved.
(h)
Temporary portable storage container.
Description: A portable storage container designed and used primarily for temporary storage of household goods and other such materials for use on a limited basis on residential property.
1.
Temporary use regulations:
a.
Container shall not exceed outside dimensions of 16 feet in length, eight feet in width, and nine feet in height.
b.
The container shall be permitted on the property for up to 14 days associated with each change of occupancy as defined by a recorded change in property ownership or valid lease.
c.
The temporary portable storage container cannot encroach on the public right-of-way, neighboring property, sidewalk, or be placed in the street. The unit must be sited on asphalt, concrete, gravel, or hard paved surface.
d.
For all multi-family uses, including multiplex (subsection 78-206(1)(a)(6)), apartments (subsection 78-206(1)(a)(7)), and townhouses (subsection 78-206(1)(a)(5)), use of temporary portable storage containers shall require review and approval by the director of planning and development. The applicant shall provide written permission from the land owner to place the temporary portable storage container on the property in accordance with the regulations listed in this section.
e.
Shall comply with section 78-906, standards and procedures applicable to all temporary uses.
(i)
Temporary shelter.
Description: These shelters are typically supported by poles, have a fabric roof and/or sides and are usually used to cover automobiles, boats, recreational vehicles, or fire wood on a temporary or permanent basis. These structures are not designed for the snow loading that can occur during the winter months. These shelters are not permitted in any zoning district in the City of Stoughton.
(j)
Mobile food vending.
Description: Mobile food vending is the retail sale of food or beverages to the general public from a mobile food vending vehicle. A mobile food vending vehicle may operate in any zoning district except in the Central Business District and residential districts.
1.
Regulations:
a.
Prior to commencing any activities under this subsection, a site plan of the subject property must be approved by the zoning administrator. The site plan must specifically show where the mobile food vending vehicle will be located on the parcel and otherwise conform to all requirements of subsection 78-908(3)(c), except that an applicant may request approval from the zoning administrator to omit one or more requirements from the site plan. The zoning administrator may approve the omission of specific site plan requirements upon a determination that the information is not required for the evaluation of the temporary use application.
b.
The temporary use must be approved under section 78-906.
c.
If other than the property owner, the person seeking approval of the temporary use must obtain, and submit to the zoning administrator, written authorization from the property owner.
d.
Mobile food vending shall not be permitted in the public right-of- way nor in any required bufferyard or landscaped area.
e.
A temporary use permit issued under this subsection shall be issued for a specified number of days, but no more than 180 consecutive days.
f.
The temporary use shall not cause the amount of on-site parking for the existing uses on the lot or parcel to fall below the minimum amount required for the lot or parcel.
g.
Mobile food vending shall not impair traffic or pedestrian flow, nor shall it obstruct vision for intersecting streets, driveways, sidewalks or other traffic areas.
h.
Mobile food vending shall not be operated or offered through a drive-through facility.
i.
Notwithstanding subsection 78-803(1), a temporary use permit issued under this subsection authorizes temporary signage that complies with the requirements for temporary signs in subsection 78-811(3) without separate approval or additional fee.
j.
Except as provided in subdivision k., mobile food vending may occur only between the hours of 6:00 a.m. and 9:00 p.m.
k.
If mobile food vending is conducted on property adjacent to residential property, sales and display activities shall be limited to daylight hours.
l.
Mobile food vending shall not use amplified music or other amplified sounds.
m.
A mobile food vendor must comply with all food preparation and sanitation regulations of the Wisconsin Food Code and Public Health Madison & Dane County, and each mobile food vending vehicle must be licensed to sell food and beverages by Public Health Madison & Dane County or by the State of Wisconsin.
n.
No mobile food vending vehicle shall be permitted within 500 feet of the location of a city-licensed special event during the hours approved for such event, unless the mobile food vending unit is part of the aforementioned event.
o.
Connection of a mobile food vending vehicle to a public source of electricity, water, or sewer is prohibited.
(k)
Mobile food vending at special events.
Description: This land use allows the operation of a mobile food vending vehicle in conjunction with a special event licensed under chapter 14, article XVIII and with the authorization of the special event licensee.
1.
Temporary use regulations.
a.
The mobile food vending vehicle must be located on the premises described as the special event location in the special event license application under subsection 14-473(b) and shall operate in strict conformance with any conditions imposed under the special event license and only during the hours approved for the event.
b.
Mobile food vending shall not be operated or offered through a drive-through facility.
c.
A mobile food vending vendor must comply with all food preparation and sanitation regulations of the Wisconsin Food Code and Public Health Madison & Dane County, and each mobile food vending vehicle must be licensed to sell food and beverages by Public Health Madison & Dane County or by the State of Wisconsin.
(10)
Energy production land uses.
(a)
Small wind energy system.
Description: A wind energy conversion system consisting of a wind turbine, a tower and associated control or conversion electronics which will be used primarily to reduce on-site consumption of utility power. A small wind energy system shall not exceed a rated capacity of 60 kW.
1.
Regulations:
a.
Permitted locations. A small wind energy system is permitted as a conditional use in any zoning district.
b.
Total height. For property sizes up to two acres, the total height shall not exceed 60 feet. For property sizes between two and five acres, the total height shall not exceed 100 feet. For property sizes greater than five acres, the total height shall not exceed 150 feet.
c.
Location. No small wind energy system shall be located in any front or side yard.
d.
Setbacks.
A.
Property lines. A small wind energy system shall be set back from the nearest property line, public road right-of-way and communication and electrical line not less than 1.1 times its total height.
B.
Inhabited structure. A small wind energy system shall be set back from the nearest inhabited building not less than 1.5 times its total height.
e.
Design standards.
A.
Monopole or freestanding design. The design of the small wind energy system shall be of a monopole or freestanding design without guy wires.
B.
Minimum blade height. The minimum height of the lowest extent of a turbine blade shall be 30 feet above the ground or 30 feet above any structure or obstacle within 100 feet from the tower.
C.
Access. No tower shall have a climbing apparatus within 12 feet of the ground. All access doors or access ways to towers and electrical equipment shall be lockable.
D.
Noise. No small wind energy system shall exceed 80 dBA as measured at the property line or 50 dBA as measured at the nearest neighboring inhabitable building.
E.
Visual appearance. Small wind energy systems shall be finished in a rust-resistant, non-obtrusive finish and color that is non-reflective. No small wind energy system shall be lighted unless required by the FAA. No advertising signs of any kind or nature whatsoever shall be permitted on any small wind energy system.
F.
Electrical interconnections. All electrical connections shall be underground and comply with all applicable codes; public utility requirements; Chapter PSC 119 "Rules for Interconnecting Distributed Generation Facilities;" PSC Forms 6027 and 6028 "Standard Distributed Generation Application Form;" and PSC Forms 6029 and 6030, "Distributed Generation Interconnection Agreement."
G.
Shadowing/flicker. Wind energy systems shall be sited in a manner that does not result in significant shadowing or flicker impacts. The applicant has the burden of proving that this effect does not have significant impact on neighboring or adjacent uses either through siting or mitigation.
H.
Signs. All signs, both temporary and permanent, are prohibited on the wind energy system, except that the manufacturer's identification and appropriate warning signs are allowed.
I.
Clearing. Clearing of natural vegetation shall be limited to that which is necessary for the construction, operation and maintenance of the wind energy system and as otherwise prescribed by applicable laws, regulations, and ordinances. Trimming of natural vegetation which blocks wind is not required by the owner or occupant of the property for which the vegetation is located if the vegetation was planted prior to the wind energy system installation. The responsibility lies with the owner of the wind energy system to negotiate the trimming of existing natural vegetation. The responsibility lies with the owner of the property where natural vegetation is planted after the installation of the wind energy system to trim the natural vegetation so as not to cause wind blockage.
J.
Signal interference. Efforts shall be made to site small wind energy systems to reduce the likelihood of blocking or reflecting television and other communication signals. If signal interference occurs, both the small wind energy system owner and individual receiving interference shall make reasonable efforts to resolve the problem. No small wind energy system shall cause permanent and material interference with television or other communication signals.
K.
Overspeed controls. Every small wind energy system shall be equipped with both manual and automatic overspeed controls.
f.
Conditional use permit application requirements. Conditional use applications for a small wind energy system shall include the following information:
A.
Site plan to scale showing the location of the proposed wind energy system and the locations of all existing buildings, structures, public right-of-ways and property lines along with distances.
B.
Elevations of the site to scale showing the height, design and configuration of the wind energy system and the height and distance to all existing structures, buildings and electrical lines in relation to property lines.
C.
Standard drawings and an engineering analysis of the systems tower including weight capacity.
D.
A standard foundation design along with soil conditions and specifications for the soil conditions at the site.
E.
Specific information on the type, size, rotor material, rated power output, performance, safety and noise characteristics of the system including the name and address of the manufacturer, model and serial number.
F.
Emergency and normal shutdown procedures.
G.
A line drawing of the electrical components of the system in sufficient detail to establish that the installation conforms to all applicable electrical codes.
H.
Evidence that the provider of electrical service of the property has been notified of the intent to install an interconnected electricity generator unless the system will not be connected to the electricity grid.
I.
A building permit shall be required and if necessary an electrical permit for the installation or modification of a wind energy system. Such system shall be installed and functioning within a period of 24 months from date of building permit issuance otherwise the conditional use process shall start over.
J.
Sound level analysis prepared by the wind turbine manufacturer or qualified engineer.
K.
Estimated cost to physically remove the wind energy system to comply with surety standards.
L.
Evidence of compliance with or non-applicability with Federal Aviation Administration requirements.
M.
Liability insurance coverage in the amount of $1,000,000 of which the City of Stoughton shall be the certificate holder.
g.
Abandonment.
A.
At such time that a wind energy system is scheduled to be abandoned or discontinued operation, the applicant will notify the department of planning and development by certified U.S. mail of the proposed date of abandonment or discontinuance of operation.
B.
The owner shall physically remove the wind energy system within 120 days of abandonment or discontinuance of operation. This period may be extended at the request of the owner and the discretion of the department of planning and development. Physically remove shall mean: Removal of the wind turbine, tower and related above grade structures and restoration of the location of the wind energy system to its natural condition, except that any landscaping, grading or below grade foundation may remain in the after conditions.
C.
In the event that an applicant fails to give such notice, the system shall be considered abandoned or discontinued if the system is out of service for a continuous period of 120 days. After the 120 days of inoperability, the department of planning and development may issue a notice of abandonment to the owner of the wind energy system. The owner shall have the right to respond to the notice of abandonment within 30 days from notice receipt date. The department of planning and development shall withdraw such notice if the owner provides information that demonstrates the wind energy system has not been abandoned.
D.
If the owner fails to respond to the notice of abandonment or if after review by the department of planning and development it is determined that the wind energy system has been abandoned or discontinued, the owner of the wind energy system shall remove the wind turbine, tower and related above grade structures at the owner's expense within 90 days of receipt of the notice of abandonment. If the owner fails to physically remove the wind energy system after the notice of abandonment procedure, the city or their designee shall have the authority to enter the subject property and physically remove the wind energy system.
E.
The planning commission shall have the authority to require the applicant to provide a form of surety (i.e., post a bond, letter of credit or establish an escrow account or by other means) at the time of construction to cover costs associated with the removal in the event the city must remove the wind energy system. The applicant shall submit a fully inclusive estimate of the costs associated with the removal, prepared by a qualified engineer. The amount shall include a mechanism to accommodate the rate of inflation over 15 years.
h.
Violation. It is unlawful for any person to construct, install, or operate a wind energy system that is not in compliance with this ordinance or with any condition contained in the conditional use site plan review issued pursuant to this ordinance.
i.
Penalties. Any person who fails to comply with any provisions of this ordinance, conditional use permit or building permit issued pursuant to this ordinance shall be subject to enforcement and penalties as allowed by this ordinance and chapter 1, section 1-3 of City Ordinance.
j.
Waiver provisions. During the conditional use process, the city council may waive any portion of this ordinance in such cases where, in the opinion of the planning commission, strict conformity would pose an unnecessary hardship to the applicant and a waiver would not be contrary to the spirit and intent of this ordinance.
(b)
Commercial wind energy system.
Description: A wind energy conversion system consisting of more than one wind turbine and tower, a wind energy conversion system which will be used primarily for off-site consumption of power or a wind energy system in excess of 60 kWh.
1.
Regulations:
a.
Permitted locations. A commercial wind energy system may be permitted as a conditional use in the industrial districts.
b.
Minimum parcel size. No commercial wind energy system shall be erected on any parcel less than ten acres in size.
c.
Total height. The total height of a commercial wind energy system shall not exceed 175 feet.
d.
Setbacks.
A.
Property lines. A commercial wind energy system shall be set back from the nearest property line and public road right-of-way not less than 1.1 times the its total height.
B.
Other uses. No commercial wind energy system shall be located within 1,000 feet of a property line of the following: platted subdivision, park, church, school or playground.
e.
Design standards.
A.
Monopole or freestanding design. The design of the small wind energy system shall be of a monopole or freestanding design without guy wires.
B.
Minimum blade height. The minimum height of the lowest extent of a turbine blade shall be 30 feet above the ground or 30 feet above any structure or obstacle within 100 feet from the tower.
C.
Access. No tower shall have a climbing apparatus within 12 feet of the ground. All access doors or access ways to towers and electrical equipment shall be lockable.
D.
Noise. No small wind energy system shall exceed 80 dBA as measured at the property line or 50 dBA as measured at the nearest neighboring inhabitable building.
E.
Visual appearance. Small wind energy systems shall be finished in a rust-resistant, non-obtrusive finish and color that is non-reflective. No small wind energy system shall be lighted unless required by the FAA. No advertising signs of any kind or nature whatsoever shall be permitted on any small wind energy system.
F.
Electrical interconnections. All electrical connections shall be underground and comply with all applicable codes; public utility requirements; Chapter PSC 119 "Rules for Interconnecting Distributed Generation Facilities;" PSC Forms 6027 and 6028 "Standard Distributed Generation Application Form;" and PSC Forms 6029 and 6030, "Distributed Generation Interconnection Agreement."
G.
Shadowing/flicker. Wind energy systems shall be sited in a manner that does not result in significant shadowing or flicker impacts. The applicant has the burden of proving that this effect does not have significant impact on neighboring or adjacent uses either through siting or mitigation.
H.
Signs. All signs, both temporary and permanent, are prohibited on the wind energy system, except that the manufacturer's identification and appropriate warning signs are allowed.
I.
Clearing. Clearing of natural vegetation shall be limited to that which is necessary for the construction, operation and maintenance of the wind energy system and as otherwise prescribed by applicable laws, regulations, and ordinances. Trimming of natural vegetation which blocks wind is not required by the owner or occupant of the property for which the vegetation is located if the vegetation was planted prior to the wind energy system installation. The responsibility lies with the owner of the wind energy system to negotiate the trimming of existing natural vegetation. The responsibility lies with the owner of the property where natural vegetation is planted after the installation of the wind energy system to trim the natural vegetation so as not to cause wind blockage.
f.
Conditional use permit application requirements. Conditional use applications for a small wind energy system shall include the following information:
A.
Site plan to scale showing the location of the proposed wind energy system and the locations of all existing buildings, structures, public right-of-ways and property lines along with distances.
B.
Elevations of the site to scale showing the height, design and configuration of the wind energy system and the height and distance to all existing structures, buildings and electrical lines in relation to property lines.
C.
Standard drawings and an engineering analysis of the systems tower including weight capacity.
D.
A standard foundation design along with soil conditions and specifications for the soil conditions at the site.
E.
Specific information on the type, size, rotor material, rated power output, performance, safety and noise characteristics of the system including the name and address of the manufacturer, model and serial number.
F.
Emergency and normal shutdown procedures.
G.
A line drawing of the electrical components of the system in sufficient detail to establish that the installation conforms to all applicable electrical codes.
H.
Evidence that the provider of electrical service of the property has been notified of the intent to install an interconnected electricity generator unless the system will not be connected to the electricity grid.
I.
A building permit shall be required and if necessary an electrical permit for the installation or modification of a wind energy system. Such system shall be installed and functioning within a period of 24 months from date of building permit issuance otherwise the conditional use process shall start over.
J.
Sound level analysis prepared by the wind turbine manufacturer or qualified engineer.
K.
Estimated cost to physically remove the wind energy system to comply with surety standards.
L.
Evidence of compliance with or non-applicability with Federal Aviation Administration requirements.
M.
Liability insurance coverage in the amount of $1,000,000.00 of which the City of Stoughton shall be the certificate holder.
g.
Abandonment.
A.
At such time that a wind energy system is scheduled to be abandoned or discontinued operation, the applicant will notify the department of planning and development by certified U.S. mail of the proposed date of abandonment or discontinuance of operation.
B.
The owner shall physically remove the wind energy system within 120 days of abandonment or discontinuance of operation. This period may be extended at the request of the owner and the discretion of the department of planning and development. Physically remove shall mean: Removal of the wind turbine, tower and related above grade structures and restoration of the location of the wind energy system to its natural condition, except that any landscaping, grading or below grade foundation may remain in the after conditions.
C.
In the event that an applicant fails to give such notice, the system shall be considered abandoned or discontinued if the system is out of service for a continuous period of 120 days. After the 120 days of inoperability, the department of planning and development may issue a notice of abandonment to the owner of the wind energy system. The owner shall have the right to respond to the notice of abandonment within 30 days from notice receipt date. The department of planning and development shall withdraw such notice if the owner provides information that demonstrates the wind energy system has not been abandoned.
D.
If the owner fails to respond to the notice of abandonment or if after review by the department of planning and development it is determined that the wind energy system has been abandoned or discontinued, the owner of the wind energy system shall remove the wind turbine, tower and related above grade structures at the owner's expense within 90 days of receipt of the notice of abandonment. If the owner fails to physically remove the wind energy system after the notice of abandonment procedure, the city or their designee shall have the authority to enter the subject property and physically remove the wind energy system.
E.
The planning commission shall have the authority to require the applicant to provide a form of surety (i.e., post a bond, letter of credit or establish an escrow account or by other means) at the time of construction to cover costs associated with the removal in the event the city must remove the wind energy system. The applicant shall submit a fully inclusive estimate of the costs associated with the removal, prepared by a qualified engineer. The amount shall include a mechanism to accommodate the rate of inflation over 15 years.
h.
Violation. It is unlawful for any person to construct, install, or operate a wind energy system that is not in compliance with this chapter or with any condition contained in the conditional use site plan review issued pursuant to this ordinance.
i.
Penalties. Any person who fails to comply with any provisions of this ordinance, conditional use permit or building permit issued pursuant to this ordinance shall be subject to enforcement and penalties as allowed by this ordinance and chapter 1, section 1-3 of City Ordinance.
j.
Waiver provisions. During the conditional use process, the city council may waive any portion of this chapter in such cases where, in the opinion of the planning commission, strict conformity would pose an unnecessary hardship to the applicant and a waiver would not be contrary to the spirit and intent of this ordinance.
(c)
Solar energy system.
Description: An energy system which converts solar energy to usable thermal, mechanical, chemical, or electrical energy.
1.
Regulations:
a.
Establishment. Solar energy systems (rooftop, building-mounted, and free standing) are permitted in all zoning districts as accessory structures
b.
Permitted locations. Free standing solar energy systems shall comply with the requirements for accessory structures. Rooftop and building-mounted solar energy systems shall comply with the height limits and setbacks for primary structures.
c.
See article I for specific bulk, density, and intensity requirements for accessory structures in each district.
d.
The requirements of Wisconsin Statutes, including but not limited to 66.0401 and 66.0403, shall apply to all solar energy systems.
(11)
Natural resource disruption and required mitigation standards: In all developments, certain areas may be required to be set aside as permanently protected green space for the purpose of natural resource protection, to meet a minimum green space ratio (GSR) requirement, or to meet a minimum landscape surface ratio (LSR) requirement. Where such permanently protected green space is required, and where the land use is also permitted per the land use regulations of the applicable conventional zoning district (see section 78-206, Detailed land use descriptions and regulations), the following regulations shall also be employed to establish land use regulations. All land uses listed in section 78-206 but not listed in this section are prohibited in permanently protected green spaces.
For all land uses, disruption to natural resource areas shall comply with the requirements of the Land Division Ordinance pertaining to drainage, grading and erosion control. All land uses located within permanently protected green space areas shall comply with the following:
(a)
Cultivation.
1.
Permitted as a conditional use:
{Permanently protected green space areas outside Natural Resource Protection Overlay Zoning District}:
a.
Permitted only if designated on the submitted site plan, and/or the recorded plat or certified survey as an "Area which may be used for cultivation".
(b)
Passive outdoor public recreational area.
1.
Permitted by right:
{All permanently protected green space areas}:
a.
Limited to a 20-foot wide area in permanently protected natural resource areas. Permitted in other permanently protected green space areas without restriction.
b.
Non-native vegetation shall not be permitted to spread into permanently protected natural resource areas beyond said 20-foot wide area.
(c)
Active outdoor public recreational area.
1.
Permitted by right:
{Permanently protected green space areas outside Natural Resource Protection Overlay Zoning District}:
a.
Non-native vegetation shall not be permitted to spread into permanently protected natural resource areas.
2.
Permitted as a conditional use:
{Floodfringe (the flood plain outside of designated floodways)}
(d)
Outdoor institutional.
1.
Permitted by right:
{Permanently protected green space areas outside Natural Resource Protection Overlay Zoning District}:
a.
Non-native vegetation shall not be permitted to spread into permanently protected natural resource areas.
(e)
Lawn care.
1.
Permitted by right:
{Permanently protected green space areas outside Natural Resource Protection Overlay Zoning District}:
a.
Non-native ground cover shall not be permitted to spread into permanently protected natural resource areas. Clearance of understory growth shall be permitted.
2.
Permitted as a conditional use.
{All permanently protected natural resource areas except wetlands}:
a.
Only disturbance associated with the care of native vegetation is permitted, with the exception of a 20-foot wide access path which may be cleared for passive recreation purposes.
b.
Each property abutting a natural resource area shall be limited to one such access path.
c.
Non-native vegetation (such as domestic lawn grasses) shall not be introduced into natural resource areas beyond said 20-foot wide access path.
(f)
Golf course.
1.
Permitted by right:
{Permanently protected green space areas outside Natural Resource Protection Overlay Zoning District}:
a.
Non-native vegetation shall not be permitted to spread into permanently protected natural resource areas.
2.
Permitted as a conditional use.
{All permanently protected natural resource areas}:
a.
Only disturbance associated with the care of native vegetation is permitted. Natural resource areas which are located within or adjacent to golf play areas shall be incorporated into the course design as out-of-bounds play hazards, and shall be maintained in their natural state.
(g)
Any permitted temporary use.
1.
Permitted by right:
{Permanently protected green space areas outside Natural Resource Protection Overlay Zoning District}
a.
Activity shall in no manner encroach upon permanently protected natural resources areas. Party securing the temporary use permit shall be responsible for restoring all such natural resource areas to an undamaged state, or shall be considered in violation of the provisions of this chapter. (Section 78-906.)
(h)
Drainage structure.
1.
Permitted as a conditional use.
{All permanently protected green space areas}:
a.
Structure shall be deemed necessary by the city engineer.
b.
Natural vegetation shall be restored in disturbed areas.
(i)
Filling.
1.
Permitted as a conditional use.
{All permanently protected green space areas}:
a.
Filling in the floodway shall be done only as required by a necessary road, bridge, utility, or other infrastructure facility which has been deemed necessary by the department of planning and development.
b.
Natural vegetation shall be restored in disturbed areas.
c.
In no instance shall filling raise the base flood elevation.
(j)
Individual septic disposal system.
1.
Permitted as a conditional use.
{Permanently protected green space areas outside Natural Resource Protection Overlay Zoning District}:
a.
Shall not locate closer than 30 feet to any other permanently protected natural resource area.
(k)
Road and/or bridge.
1.
Permitted as a conditional use.
{All permanently protected green space areas}:
a.
May locate in or across a natural resource areas only in conjunction with a boat landing, or when deemed essential by the department of planning and development.
b.
May locate in other permanently protected green space areas if designed to provide an essential service to an activity area located within the green space area which cannot be efficiently reached from another point.
c.
Road networks shall be designed to circumvent permanently protected green space areas, thereby eliminating the need for intrusions and crossings.
(l)
Utility lines and related facilities.
1.
Permitted as a conditional use.
{All permanently protected green space areas}:
a.
May locate in or across a natural resource areas only when deemed essential by the department of planning and development.
b.
May locate in other permanently protected green space areas if designed to provide an essential service to an activity area located within the green space area which cannot be efficiently reached from another point.
c.
In general, utility lines shall be designed to circumvent permanently protected green space areas, thereby eliminating the need for intrusions and crossings.
(m)
Piers and wharfs.
1.
Permitted as a conditional use.
{All permanently protected green space areas}:
a.
A site plan shall be required per section 78-908 for construction, erection, placement or extension of a pier or wharf, with specific information provided regarding: its location in relation to the shoreline and abutting riparian property lines, and regarding dimensions and building materials.
(Ord. No. 0-6-09, 6-23-2009; Memo. of 3-22-2010; Ord. No. 0-6-10, § 1, 8-10-2010; Ord. No. 0-9-10, § 1, 8-10-2010; Ord. No. 0-21-10, § 1, 12-14-2010; Ord. No. 0-22-10, § 1, 12-14-2010; Ord. No. 0-4-2011, §§ 111, 112, 118, 121—123, 152, 155, 156, 5-20-2011; Ord. No. 0-1-2012, §§ 6, 7, 1-24-2012; Ord. No. 0-3-2012, § 1, 4-10-2012; Ord. No. 0-12-2012, § 1, 7-10-2012; Ord. No. 0-20-2012, § 1, 12-11-2012; Ord. No. 0-27-2013, § 1, 11-12-2013; Ord. No. 0-29-2013, § 1, 12-10-2013; Ord. No. 0-13-2014, §§ 6, 7, 7-8-2014; Ord. No. 0-19-2014, § l, 8-26-2014; Ord. No. 0-3-2015, § 1, 7-14-2015; Ord. No. 0-2-2015, § 1, 6-9-2015; Ord. No. 0-02-2016, § 1, 2-9-2016; Ord. No. 0-04-2016, , §§ 1, 2, 2-23-2016; Ord. No. 0-26-2016, § 1, 12-27-2016; Ord. No. 0-2-2019, § 1, 2-12-2019; Ord. No. 0-12-2019, § 3(Exh. B), 4-23-2019; Ord. No. 0-13-2019, § 3, 4-23-2019; Ord. No. 0-18-2020, § 1, 9-22-2020; Ord. No. 0-26-2020, 12-8-2020; Ord. No. 0-13-2021, §§ 20—23, 6-8-2021; Ord. No. 0-27-2022, § 24, 11-15-2022; Ord. No. 0-21-2024, § 1(Exh. A), 11-26-2024)
(1)
Definitions. The following words and phrases, whenever used in this chapter, shall have the meanings defined in this section unless the context requires otherwise:
Tobacco product: Any manufactured product containing tobacco or nicotine, including, but not limited to, cigarettes, cigars, pipe tobacco, snuff, chewing tobacco, dipping tobacco, bidis, snus, dissolvable tobacco products, e-cigarette products such as propylene glycol, glycerin, nicotine, flavorings, personal vaporizers, electronic nicotine delivery systems, or any device used to ingest tobacco. However, "tobacco product" does not include any product that has been approved by the U.S. Food and Drug Administration, pursuant to its authority over drugs and devices for sale as a tobacco use cessation product or for other medical purposes and sold solely for that approved purpose.
Tobacco product businesses: As defined as an establishment in which ten percent or more of the gross public floor area is devoted to, or ten percent or more of the stock in trade of tobacco products. For purposes of calculating the total public floor area, outdoor green spaces, parking areas, paved areas, or areas not used for commercial sales shall be excluded.
(2)
Tobacco product businesses. The following requirements apply to any tobacco product business:
(a)
The business may only be located within the Planned Business (PB) District or Central Business (CB) District zoning district.
(b)
Regulation on distance of tobacco product business. Distance is to be measured from property line to property line, shortest distance between the two properties.
1.
Tobacco product business cannot be located within 300 feet of any property zoned as a residential district, as measured from the lot lines.
2.
Tobacco product business cannot be located within 1,000 feet of any school, library, childcare center, park, or playground, as measured from the lot lines.
3.
Tobacco product business cannot be located within 1,000 feet of another tobacco product business, as measured from the lot lines.
(c)
Sign limitations. Notwithstanding any other provision of this Code, a tobacco product business shall only be permitted one sign, which shall be an on-premises or building sign only. All such signs shall meet the following criteria:
1.
No sign shall be placed in any window.
2.
No sign shall contain any flashing lights, moving elements, or mechanically changing messages.
(d)
The business owner must have a valid tobacco product business license as required by sections 14-491—[14-]498.
(Ord. No. 0-22-2025, § 1, 6-27-2025)
(1)
General Provisions: As set forth in Wis. Stat. § 62.23(7)(h), the continued lawful use of a building, premises, structure, or fixture existing at the time of the adoption or amendment of a zoning ordinance may not be prohibited although the use does not conform with the provisions of the ordinance. As required by law, the city's interpretation and application of the nonconforming use regulations set forth in this section shall be governed by state statutes relating to nonconforming uses, and any subsequent amendments thereto. Applicable provisions of Wis. Stat. § 62.23(7) relating to nonconforming uses, and subsequent amendments thereto, are hereby incorporated in this section by reference. In the event of a conflict of law in this chapter, Wis. Stat. § 62.23(7)(g) shall apply.
(2)
Continuance of a Nonconforming Use: Any nonconforming use may continue as allowed by law.
(3)
Modification of a Nonconforming Use: As prescribed by Wis. Stat. § 62.23(7)(h), a nonconforming use shall not be expanded.
(4)
Discontinuance of a Nonconforming Use: If the nonconforming use is discontinued for a period of 12 consecutive months, any future use of the building, premises, structure or fixture shall conform to this chapter.
(5)
Structural Alterations and Repairs of a Structure Containing a Nonconforming Use: This Subsection is not intended to regulate ordinary maintenance and repair; however, the city and owners of structures containing nonconforming uses are subject to Wisconsin Statutes that limit structural repairs and alterations to structures containing nonconforming uses. To meet applicable statutory requirements, 1 the city recommends that all owners of structures containing nonconforming uses maintain records of structural repairs and alterations. The burden is on the person requesting a permit for structural repairs and alterations to establish eligibility under the law in effect at the time that the permit is requested.
See also Regulations for Nonconforming Structures set forth in this Chapter.
(Ord. No. 0-6-09, 6-23-2009; Memo. of 3-22-2010; Ord. No. 0-16-2012, § 1, 9-11-2012; Ord. No. 0-2-14, § 1, 5-13-2014; Ord. No. 0-22-2014, § 1, 9-9-2014)
LAND USE REGULATIONS
The purpose of this article is to indicate which land uses may locate in each zoning district and under what requirements; and which land uses may not locate therein. A further distinction is made for land uses which may locate in a given district only upon obtaining a conditional or temporary use permit to do so. Finally, certain land uses may locate in a given district as a matter of right upon compliance with special regulations for such a land use.
(Ord. No. 0-6-09, 6-23-2009)
The land uses listed in article I are specifically designated and refer to the detailed listing of land uses contained in section 78-206 (Detailed land use descriptions and regulations).
(1)
Land uses permitted by right: Land uses listed as permitted by right are permitted per the general land use requirement of this chapter (section 78-205); per the general requirements of the specific zoning district in which they are located; per any additional requirements imposed by applicable overlay zoning districts as designated on the official zoning map; per the general requirements of this chapter including section 78-908; and per any and all other applicable city, county, state, and federal regulations.
(2)
Land uses permitted as a conditional use: Land uses listed as permitted as a conditional use are permitted subject to all the requirements applicable to uses permitted by right as listed in subsection (1), above, plus any additional requirements applicable to that particular land use as contained in section 78-206 (Detailed land use descriptions and regulations), including any additional requirements imposed as part of the conditional use process. Each application for, and instance of, a conditional use shall be considered a unique situation and shall not be construed as precedence for similar requests. (See also section 78-905 for Conditional use procedures).
(3)
Land uses permitted as an accessory use: Land uses permitted as an accessory use are permitted subject to all the requirements applicable to uses permitted by right as listed in subsection (1), above, plus any additional requirements applicable to that particular land use as contained in section 78-206 (Detailed land use descriptions and regulations).
(4)
Land uses permitted as a temporary use: Land uses listed as permitted as a temporary use are permitted subject to all the requirements applicable to uses permitted by right as listed in subsection (1), above, plus any additional requirements applicable to that particular land use as contained in section 78-206(9) (Detailed land use descriptions and regulations). (See also section 78-206.)
For land uses which are not listed in a specific zoning district in section 78-105, see section 78-206.
Even if a land use may be indicated as permitted by right or permitted as a conditional use in a particular district, such a land use may not necessarily be permitted or permissible on any or every property in such district. No land use is permitted or permissible on a property unless it can be located or implemented on it in full compliance with all of the standards and regulations of this chapter applicable to the specific land use and property in question, or unless an appropriate variance has been granted pursuant to section 78-910.
(Ord. No. 0-6-09, 6-23-2009)
See the Land Use Table Appendix C, which is non-regulatory, for a summary of the treatment of all land uses regulated by this article.
(Ord. No. 0-6-09, 6-23-2009; Ord. No. 0-4-2011, § 12, 5-10-2011)
All uses of land initiated within the jurisdiction of this chapter on, or following, the effective date of this chapter shall comply with all of the provisions of this chapter. Specifically:
(1)
Land use regulations and requirements: All uses of land shall comply with all the regulations and requirements of this chapter, pertaining to the types of uses to which land is put within particular zoning districts. Such regulations and requirements address both general and specific regulations which land uses shall adhere to; and which are directly related to the protection of the health, safety and general welfare of the residents of the City of Stoughton and its environs.
(2)
Density and intensity regulations and requirements: All development of land shall comply with all the regulations and requirements of this chapter, pertaining to the maximum permitted density (for residential land uses) and intensity (for nonresidential land uses) of land uses. Such regulations and requirements address issues such as floor area ratios (FARs), green space ratios (GSRs), and landscape surface ratios (LSRs); which are directly related to, and are a critical component of, density and intensity and the protection of the health, safety, and general welfare of the residents of the City of Stoughton and its environs.
(3)
Bulk regulations and requirements: All development of land shall comply with all the regulations and requirements of this chapter, pertaining to the maximum permitted bulk of structures and the location of structures on a lot. Such regulations and requirements address issues such as height, setbacks from property lines and rights of way, and minimum separation between structures; which are directly related to, and a critical component of, the effective bulk of a structure and the protection of the health, safety, and general welfare of the residents of the City of Stoughton and its environs.
(4)
Natural resources and green space regulations and requirements: All land use and/or development of land shall comply with all the regulations and requirements of this chapter, pertaining to the protection of sensitive natural resources and required green space areas. Such regulations and requirements address issues such as absolute protection, partial protection, and mitigation; which are directly related to, and a critical component of, the protection of natural resources and the protection of the health, safety, and general welfare of the residents of the City of Stoughton and its environs.
(5)
Landscaping and bufferyards regulations and requirements: All development of land shall comply with all the regulations and requirements of this chapter, pertaining to the provision of landscaping and bufferyards. Such regulations and requirements address issues such as minimum required landscaping of developed land, and minimum required provision of bufferyards between adjoining zoning districts and/or development options; which are directly related to, and a critical component of, the effective bulk of a structure and the protection of the health, safety, and general welfare of the residents of the City of Stoughton and its environs.
(6)
Performance standards and requirements: All development of land shall comply with all the regulations and requirements of this chapter, pertaining to the provision of appropriate access, parking, loading, storage, and lighting facilities. Such regulations and requirements address issues such as maximum permitted access points, minimum required parking spaces, the screening of storage areas, and maximum permitted intensity of lighting, as well as defining acceptable levels of potential nuisances such as noise, vibration, odors, heat, glare and smoke; which are directly related to, and a critical component of, the protection of the health, safety, and general welfare of the residents of the City of Stoughton and its environs.
(7)
Signage regulations and requirements: All land use and/or development of land shall comply with all the regulations and requirements of article VIII, pertaining to the type and amount of signage permitted on property. Such regulations and restrictions address issues such as the maximum area of permitted signage and the number and types of permitted signage; which are directly related to, and a critical component of, the protection of the health, safety, and general welfare of the residents of the City of Stoughton and its environs.
(8)
Procedural regulations and requirements: All land use and/or development of land shall comply with all the regulations and requirements of article IX, pertaining to the procedures necessary to secure review and approval of land use and/or development. Such regulations and restrictions address both procedural and technical requirements; and are directly related to, and a critical component of, the protection of the health, safety, and general welfare of the residents of the City of Stoughton and its environs. At a minimum, all development shall be subject to the requirements of section 78-908.
(9)
Number of buildings per lot. In the RH, SR-3, SR-4, SR-5 and SR-6 Districts, only one principal building shall be permitted on any one lot. In the TR-6, MR-10, MR-24, NO, PO, NB, PB, CB, PI, GI, HI and I Districts, more than one principal building shall be permitted on any one lot upon the granting of a conditional use permit for a large development in compliance with subsection 78-205(11).
(10)
Reserved.
(11)
Large development regulations: The following definitions shall be incorporated as part of this section:
(a)
Large scale retail and/or commercial development: An area of land comprising one or more contiguous parcels or building sites for a single enterprise or multiple enterprises engaged primarily in retail sales and/or commercial services, the area of which is subject to a coordinated plan of building placement where the cumulative size of the building or buildings housing enterprises that are or will be engaged in retail sales and/or commercial services exceeds 20,000 square feet of gross floor area, including both display and enclosed storage areas, and where one or both of the following conditions exist:
1.
The parking area is or will be served by an integrated system of off-street vehicular parking benefiting all or substantially all improvements within such area.
2.
The area is or will be subject to reciprocal access rights benefiting all or substantially all improvements within such area.
(b)
Large scale retail building: A single building in which 20,000 square feet or more of gross floor area, including enclosed storage areas, is or will be used primarily for retail sales.
(c)
Large scale commercial service building: A single building in which 20,000 square feet or more of gross floor area, including enclosed storage areas, is or will be used primarily for commercial services.
(d)
Retail sale: The transfer of title to tangible personal property in the ordinary course of business to the purchaser for consumption or use other than resale or further processing or manufacturing, but not including transfers in response to orders placed by mail, telephone, internet or similar means where the tangible personal property is shipped to the purchaser.
(e)
Commercial services: Labor or services provided in the ordinary course of business that do not produce a tangible commodity. For purposes of this ordinance, "commercial services" may include retail sales that are incidental to the primary use of providing commercial services.
(f)
The following shall apply to all large developments:
1.
Applicability. The requirements of this section are applicable to all new retail and commercial service developments according to the schedule in Figure 2.1 at the end of this section, and such developments shall be conditional uses in the zoning districts in which they are allowed. A separate conditional use permit is not required where such developments are part of a PD district. All additions to existing retail and commercial service developments built either before or after the adoption of this section, which results in the total development size reaching a new threshold limit as defined in Figure 2.1 shall also require a conditional use permit and become subject to the requirements of this section.
The following standards are intended to ensure that large retail and commercial service developments are properly located and are compatible with the surrounding area and the overall community character of the city. Such projects shall also be subject to the more general standards for the approval of conditional use permits or PD districts.
2.
Requirements.
a.
Compatibility with city plans. A compatibility report is required when a retail and commercial service development reaches a defined threshold as outlined in Figure 2.1. The applicant shall provide, through a written compatibility report submitted with the petition for a conditional use permit or rezoning application for the PD district, adequate evidence that the proposed building and overall development project will be compatible with the city's comprehensive plan, any detailed neighborhood plan for the area, and any other plans officially adopted by the city.
b.
Large development questionnaire. A large development questionnaire shall be completed when a development reaches a defined threshold as outlined in Figure 2.1. The large development questionnaire shall be in the format included as Figure 2.2 at the end of this section.
c.
Traffic impact analysis. A traffic impact analysis is required when a development reaches a defined threshold as outlined in Figure 2.1. The traffic impact analysis shall be completed in accordance with the most current revision of the Traffic Impact Analysis Guidelines published by the State of Wisconsin DOT. In addition, the following are required:
d.
All projects shall have direct access to an arterial street, or to a collector level street deemed appropriate by the planning commission;
e.
Vehicle access shall be designed to accommodate peak on-site traffic volumes without disrupting traffic on public streets or impairing pedestrian safety. This shall be accomplished through adequate parking lot design and capacity; access drive entry throat length, width, design, location, and number; traffic control devices; and sidewalks;
f.
The site design shall provide direct connections to adjacent land uses if required by the city;
g.
The applicant shall provide funding to the city to hire a traffic engineer of the city's choice to complete and present a traffic impact analysis;
h.
Where the applicant's or the city's traffic impact analysis indicates that a project may cause off-site public roads, intersections, or interchanges to function below level of service (LOS) C, then the city may deny the application, may require a size reduction in the proposed development, and/or may require the developer to construct and/or pay for required off-site improvements to achieve LOS C for a planning horizon of a minimum of ten years assuming full build-out of the development;
i.
The city has the option to require a trip generation study.
3.
Economic and fiscal impact analysis. An economic and fiscal impact analysis is required when a development reaches a defined threshold as outlined in Figure 2.1. The economic and fiscal impact analysis shall include all of the items identified in Figure 2.3 of this section. In addition, the economic and fiscal impact analysis shall include the following:
a.
Identify and assess the economic and fiscal impacts on the community;
b.
Propose measures to mitigate adverse impacts and/or maximize positive impacts including provision of infrastructure or public services improvements sufficient to support the project. Any adverse impacts that cannot be mitigated shall be identified. Mitigation measures to be implemented by the applicant shall be identified;
c.
The applicant shall provide the necessary funding to the city to hire a consultant of the city's choice, with appropriate experience to complete and present an economic and fiscal impact analysis to the city.
4.
Detailed neighborhood plan. In the absence of an adopted detailed neighborhood plan for the subject property, the conditional use or planned development application for a development exceeding 80,000 square feet in total gross floor area of all combined buildings within the development shall be accompanied or preceded by a new city-approved detailed neighborhood plan for all areas within 1,500 feet of the subject property, as measured from the outer perimeter of the subject property or group of properties proposed for development, and any other nearby lands as determined by the planning commission and common council to be part of the defined neighborhood. The detailed neighborhood plan shall clearly demonstrate the provision of land use, multi-modal transportation, utility, stormwater management and community character components, and patterns that support the objectives of the city's comprehensive plan, as determined by the planning commission and common council.
5.
The detailed neighborhood plan shall contain the following specific elements at a scale of not less than one inch equals 400 feet:
a.
Land use with specific zoning districts and/or land uses;
b.
Transitional treatments such as berms and/or landscaping between areas with differing land uses or character;
c.
Complete public road network;
d.
Pedestrian and bicycle network;
e.
Transit routes and stops, where applicable;
f.
Conceptual stormwater management network;
g.
Public facility sites including parks, schools, conservation areas, public safety facilities and public utility facilities;
h.
Recommendations for community character themes including building materials, landscaping, streetscaping and signage.
6.
Facilities and associated features. The following requirements are applicable when a retail and commercial service development reaches the defined threshold outlined in Figure 2.1:
a.
Building location. Where buildings are proposed to be distant from a public street, as determined by the planning commission, the overall development design shall include smaller buildings on pads or outlots closer to the street. Placement and orientation must facilitate appropriate land use transitions and appropriate traffic flow to adjoining roads and neighboring commercial areas, and neighborhoods, and must forward community character objectives as described in the city's comprehensive plan.
b.
Building materials. Exterior building materials shall be of comparable aesthetic quality on all sides. Building materials such as glass, brick, tinted and decorative concrete block, wood, stucco, and exterior insulation and finish systems (EIFS) shall be used, as determined appropriate by the planning commission. Decorative architectural metal with concealed fasteners or decorative tilt-up concrete panels may be approved if incorporated into the overall design of the building.
c.
Building design. The building exterior shall complement other buildings in the vicinity, and shall be of a design determined appropriate by the planning commission, including the following:
A.
The building shall employ varying setbacks, heights, roof treatments, doorways, window openings, and other structural or decorative elements to reduce apparent size and scale of the building;
B.
A minimum of 20 percent of the structure's facades that are visible from a public street shall employ actual protrusions or recesses with a depth of at least six feet. No uninterrupted facade shall extend more than 100 feet;
C.
A minimum of 20 percent of all of the combined linear roof eave or parapet lines of the structure shall employ differences in height, with such differences being six feet or more as measured eave to eave or parapet to parapet;
D.
Roofs with particular slopes may be required by the city to complement existing buildings or otherwise establish a particular aesthetic objective;
E.
Ground floor facades that face public streets shall have arcades (a series of outdoor spaces located under a roof or overhang and supported by columns or arches), display windows, entry areas, awnings, or other such features along no less than 50 percent of their horizontal length. The integration of windows into building design is required, and shall be transparent, clear glass (not tinted) or spandrel glass between three to eight feet above the walkway along any facades facing a public street. The use of blinds shall be acceptable where there is a desire for opacity;
F.
Building facades shall include a repeating pattern that includes no less than three of the following elements: (i) color change, (ii) texture change, (iii) material modular change, (iv) expression of architectural or structural bay through a change in plane no less than 24 inches in width, such as an offset, reveal or projecting rib. At least one of these elements shall repeat horizontally. All elements shall repeat at intervals of no more than 30 feet, either horizontally or vertically.
d.
Building entrances. Public building entryways shall be clearly defined and highly visible on the building's exterior design, and shall be emphasized by on-site traffic flow patterns. Two or more of the following design features shall be incorporated into all public building entryways: canopies or porticos, overhangs, projections, arcades, peaked roof forms, arches, outdoor patios, display windows, distinct architectural details. When additional stores located in the principal building exceed 30 percent of the gross floor area, separate entrances may be considered for each such store that shall conform to the above requirements.
e.
Building color. Building facade colors shall be non-reflective, subtle, neutral, or earth tone. The use of high intensity colors, metallic colors, fluorescent colors or black on facades shall be prohibited. Building trim and architectural accent elements may feature bright colors or black, but such colors shall be muted, not metallic, not fluorescent, and not specific to particular uses or tenants. Standard corporate and trademark colors shall be permitted only on signage, subject to the limitations in chapter 78, article VIII.
f.
Screening.
A.
All ground-mounted and wall-mounted mechanical equipment, refuse containers and any permitted outdoor storage shall be fully concealed from on-site and off-site ground level views, with materials identical to those used on the building exterior;
B.
All rooftop mechanical equipment shall be screened by parapets, upper stories, or other areas of exterior walls or roofs so as to not be visible from public streets adjacent or within 1,000 feet of the subject property. Fences or similar rooftop screening devices may not be used to meet this requirement;
C.
Loading docks shall be completely screened from surrounding roads and properties. Said screening may be accomplished through loading areas internal to buildings, screen walls, which match the building exterior in materials and design, fully opaque landscaping at time of planting, or combinations of the above;
D.
Gates and fencing may be used for security and access, but not for screening, and they shall be of high aesthetic quality. Decorative metal picket fencing and screening is acceptable. Chain link, wire mesh or wood fencing is unacceptable. Decorative, heavy-duty wood gates may be used.
g.
Parking.
A.
Parking lots in which the number of spaces significantly exceeds the minimum number of parking spaces required in section 78-704 shall be allowed only with specific and reasonable justification;
B.
Parking lot design shall employ interior, curbed landscaped islands at all parking aisle ends. In addition, the project shall provide landscaped islands within each parking aisle spaced at intervals no greater than one island per every 20 spaces in that aisle. Islands at the ends of aisles shall count toward meeting this requirement. Each required landscaped island shall be a minimum of 360 square feet in landscaped area;
C.
Landscaped and curbed medians, a minimum of ten feet in width from back-of-curb to back-of-curb, shall be used to create distinct parking areas of no more than 120 parking stalls.
h.
Bicycle and pedestrian facilities.
A.
The entire development shall provide for safe pedestrian and bicycle access to all uses within the development, connections to existing and planned public pedestrian and bicycle facilities, and connections to adjacent properties;
B.
Pedestrian walkways shall be provided from all building entrances to existing or planned public sidewalks or pedestrian/bike facilities. The minimum width for sidewalks adjacent to buildings shall be ten feet; and the minimum width for sidewalks elsewhere in the development shall be five feet;
C.
Sidewalks other than street sidewalks or building aprons shall have adjoining landscaping along at least 50 percent of their length. Such landscape shall match the landscaping used for the street frontages;
D.
Crosswalks shall be distinguished from driving surfaces to enhance pedestrian safety by using different pavement materials, or pavement color, or pavement textures, and signage;
E.
The development shall provide secure, integrated bicycle parking at a rate of one bicycle rack space for every 50 vehicle parking spaces;
F.
The development shall provide exterior pedestrian furniture in appropriate locations at a minimum rate of one seat for every 20,000 square feet of gross floor area;
G.
The development shall provide interior pedestrian furniture in appropriate locations at a minimum rate of one bench seat for every 10,000 square feet of gross floor area. Seating in food service areas, or other areas where food or merchandise purchasing activities occur shall not count toward this requirement. A minimum of four seats shall be located within the store, with a clear view through exit doors to a passenger pick-up or drop-off area.
i.
Central areas and features. Each development exceeding 80,000 square feet in total gross floor area shall provide central area(s) or feature(s) such as a patio/seating area, pedestrian plaza with benches, outdoor playground area, water feature, and/or other such deliberately designated areas or focal points that adequately enhance the development or community. All such areas shall be openly accessible to the public, connected to the public and private sidewalk system, designed with materials compatible with the building and remainder of the site, and shall be maintained over the life of the building project.
j.
Cart returns. A minimum of one 200-square foot cart return area shall be provided for every 100 parking spaces. Cart corrals shall be of durable, non-rusting, all season construction, and shall be designed and colored to be compatible with the building and parking lot light standards. There shall be no exterior cart return or cart storage areas located within 25 feet of the building.
k.
Outdoor display areas. Exterior display areas shall be permitted only where clearly depicted on the approved site plan. All exterior display areas shall be separated from motor vehicle routes by a physical barrier visible to drivers and pedestrians, and by a minimum of ten feet. Display areas on building aprons must maintain a minimum walkway width of ten feet between the display items and any vehicle drives.
l.
Outdoor storage uses and areas. Exterior storage structures or uses, including the parking or storage of service vehicles, trailers, equipment, containers, crates, pallets, merchandise, materials, fork lifts, trash, recyclables, and all other items shall be permitted only where clearly depicted and labeled on the approved site plan, such outdoor storage uses and areas shall be appropriately screened as required by subsection 78-205(11)(f)6f.
m.
Landscaping. On-site landscaping shall be provided at time of building occupancy and maintained per the following landscaping requirements:
A.
Landscaping plan shall be submitted to the planning commission for approval, as part of the site plan.
B.
Building foundation landscaping is required for all building frontages facing public streets in order to provide visual breaks in the mass of the building. Such foundation landscaping shall be placed along 30 percent of facades facing public streets. Foundation landscaping may be planted between the building and drive lane. One ornamental tree with a minimum one and one-half inch caliper or one minimum six-foot tall tree ("whips" not permitted), and four shrubs at a minimum height of 18 inches tall shall be planted for every ten linear feet of building foundation planter area. Appropriate trees and shrubs include crabapple, birch, cherry, hawthorne, service berry, arborvitae, dogwood, lilac, vibernum, cotoneaster, forsythia, hazelnut, barberry, spirea, juniper, yew, or similar species and varieties approved by the city;
C.
One street tree at a minimum of two-inch caliper shall be planted at 50-foot centers along, and within ten feet of, all public and private streets and drives, including parking lot connections and circulation drives, and loading areas. Such tree plantings shall be planted in tree wells along the circulation drives adjacent to the sides of the store that face a public or private street, along both sides of internal drives, and along the outside edge of loading areas. Appropriate trees include sugar maple, pin oak, ginkgo, or similar species and varieties approved by the city;
D.
One shade tree at a minimum of two-inch caliper shall be planted on each parking lot peninsula and island. Appropriate trees include honey locust, linden, sugar maple, red maple, or similar species and varieties approved by the city;
E.
Where possible, all landscaped areas shall be at least ten feet wide in their smallest dimension, except that tree wells may be a minimum of 36 square feet;
F.
For development exceeding 40,000 square feet in total gross floor area, and where the subject property abuts an area zoned or planned for residential, institutional, or office use, a minimum six-foot high berm shall be provided. The berm shall be planted with a double row of white, green or blue spruce plantings, or similar species and varieties approved by the city, spaced 15 feet on center.
n.
Lighting. On-site exterior lighting shall meet all the standards of section 78-707, except that in addition:
A.
Total cut-off luminaries with angles of less than 90 degrees shall be required for all pole and building security lighting to ensure no fugitive up lighting occurs;
B.
At a minimum, as measured over ambient lighting conditions on a clear night, exterior lighting shall not exceed more than one-half foot-candles above ambient levels along all property lines, and shall not exceed an average illumination level of 3.6 foot-candles nor provide below a minimum of 0.9 foot-candles in public parking and pedestrian areas;
C.
The color and design of pole lighting standards shall be compatible with the building and the city's public lighting in the area, and shall be uniform throughout the entire development site.
D.
Outdoor lighting shall be full cut-off fixtures and downward facing and no direct light shall bleed onto adjacent properties. Reflected glare onto nearby buildings, streets or pedestrian areas is prohibited. The applicant must provide to the city information on how outdoor lighting will be accomplished to minimize impacts on adjacent properties and roadways. To minimize any indirect overflow of light on adjacent properties, the height of any proposed parking lot light standard should be as short as possible and should stair step down to a lower height when close to residential uses.
E.
The applicant shall submit to the city sufficient information, in the form of an overall exterior lighting plan, to enable the city to determine that the requirements of this section will be satisfied. The exterior lighting plan shall include at least the following:
1.
Manufacturer specification sheets, cut-sheets or other information provided by the manufacturer for all proposed lighting fixtures.
2.
The proposed location, mounting height, and aiming point of all exterior lighting fixtures.
3.
If building elevations are proposed for illumination, drawings shall be provided for all relevant building elevations showing the fixtures, the portions of the elevations to be illuminated, the luminance levels of the elevations, and the aiming point for any remote light fixture.
4.
A brief written narrative, with accompanying plan or sketch, which demonstrates the objectives of the lighting and a computer generated photometric grid showing foot-candle readings every ten feet within the property or site, and ten feet beyond the property lines at a scale specified by city staff. Iso-footcandle contour line style plans are also acceptable.
o.
Signage. The plan for exterior signage shall provide for modest, coordinated, and complimentary exterior sign locations, configurations, and color throughout the development, including outlots. All freestanding signage within the development shall complement on-building signage. Monument style ground signs are required, and shall not exceed a height of eight feet. Consolidated signs for multiple users may be required instead of multiple individual signs. The city may require the use of muted corporate colors on signage if proposed colors are not compatible with the city's design objectives for the area. The use of logos, slogans, symbols, patterns, striping and other markings, and colors associated with a franchise or chain is permitted, and shall be considered as contributing to the number and area of permitted signs.
p.
Noise. Noise associated with activities at the site shall not create a nuisance to nearby properties, and shall comply with applicable city noise requirements.
q.
Natural resources protection. Each project shall meet the erosion control and stormwater management standards found in chapter 10, article III and other [applicable] city ordinances. In addition, post-development runoff rates shall not exceed pre-settlement rates. In general, existing natural features shall be integrated into the site design as a site and community amenity. Maintenance of any storm water detention or conveyance features are solely borne by the developer/owner unless dedicated and accepted by the city.
A.
Additional requirements. All large scale retail and commercial buildings and developments in excess of 20,000 square feet are subject to the following additional requirements:
1.
Policy on vacation of existing sites. Where such a building is proposed as a replacement location for a business already located within the city, the city shall prohibit any privately imposed limits on the type or reuse of the previously occupied building through conditions of sale or lease.
2.
Developer's agreement. The developer shall enter into a development agreement with the city, which shall include the payment of all utilities including but not limited to storm water, sanitary sewer, and street infrastructure, and the commitment to adhere to the policy on vacation of existing sites per subsection (1) above. Off-site improvements may also be required as part of the development agreement.
3.
Absolute building area cap. No individual building shall exceed a total of 155,000 square feet in gross floor area. This cap may not be exceeded by the granting of a planned development permit.
4.
Outlots. All buildings on outlots shall be of architectural quality comparable to the primary structure as determined by the planning commission.
(g)
Exceptions.Section 78-205(11) establishes standards for the development of buildings over 20,000 square feet of gross floor area. In the event the applicant desires a deviation or exception from such requirements, the applicant shall present justification for such deviation or exception, which may be approved or denied by the common council after recommendation by the planning commission.
(h)
Appendices. The following appendices referenced herein are incorporated into the requirements of this section. Amendments to the appendices may be made by a majority vote of the common council after review and recommendation by the planning commission.
Figure 2.1: Large Scale Retail and Commercial Development Requirements
Figure 2.2 Large Development Questionnaire
Figure 2.3: Economic and Fiscal Impact Analysis Requirements
(12)
Division or combining of a lot. No recorded lot shall be divided into two or more lots, and no two or more recorded lots shall be combined into one or more lots, unless such division or combination results in the creation of lots, each of which conforms to all of the applicable regulations of the zoning district in which said lot is located (as set forth in this chapter). (See also the City of Stoughton Land Division Ordinance.)
(Ord. No. 0-6-09, 6-23-2009; Ord. No. 0-25-2009, § 1, 12-22-2009; Memo. of 3-22-2010; Ord. No. 0-4-2011, §§ 18—101, 148—150, 5-10-2011; Ord. No. 0-29-2013, § 1, 12-10-2013; Ord. No. 0-4-2015, § 2, 4-14-2015; Ord. No. 0-8-2019, 3-12-2019; Ord. No. 0-26-2020, 12-8-2020)
The land use categories employed by this chapter are defined in this section. Land uses which are not listed in this chapter are not necessarily excluded from locating within any given zoning district. Section 78-911 empowers the zoning administrator to make interpretations on matters regarding specific land use proposals which are not addressed by this chapter.
(1)
Residential land uses.
(a)
Conventional residential development.
Description: This land use includes, but is not limited to, all residential developments which do not provide permanently protected green space areas. Property which is under common ownership of a property owners' association is permitted, but is not a required component of this type of development. Up to ten percent of a conventional residential development's gross site area (GSA) can contain natural resource areas which must be protected (or other permanently protected green space areas), without a reduction in maximum gross density (MGD). (See note (1)(f) below.)
Conventional residential development can be made up of the following dwelling unit types (on the following pages):
The table below indicates the measurements shown on the dwelling unit type graphics on the following pages. See article 0 for district specific regulations. (Note: all letters do not appear on all graphics.)
[A:
Reserved]
B:
Minimum lot width
C:
Minimum street frontage
D:
Front or street side lot line to house
E:
Front or street side lot line to garage
F:
Side lot line to house or garage
[G:
Reserved]
H:
Rear lot line to house or garage
I:
Side lot line to accessory structure
J:
Rear lot line to accessory structure
[K:
Reserved]
L:
Minimum paved surface setback
M:
Minimum dwelling unit separation
P:
Minimum number of off-street parking spaces required on the lot
1.
Single-family detached.
Description: A dwelling designed for and occupied by not more than one family and having no roof, wall, or floor in common with any other dwelling unit. This dwelling unit type consists of a fully detached single-family residence which is located on an individual lot or within a large development. The dwelling unit must be a site built structure built in compliance with the State of Wisconsin Uniform Dwelling Code (UDC), or may be a manufactured dwelling (modular home) as permitted by the UDC or a manufactured home as permitted by the HUD code. For any of these dwelling units, the use of a permanent, continuous UDC foundation is required. This dwelling unit type may not be split into two or more residences. Refer to the illustration below and to article I for setback requirements labeled in capital letters:
2.
Duplex.
Description: These dwelling unit types consist of a single-family dwelling which is attached on one side to another single-family residence where the entire building is under single ownership. A minimum building code required fire rated wall assembly division, separating living areas from the lowest level to flush against the underside of the roof is required between each dwelling unit. Upon the effective date of this ordinance amendment (March 3, 2016), all newly constructed duplexes are required to install a sanitary sewer lateral and public water lateral for each individual dwelling unit except, a duplex may be constructed on any existing vacant TR-6 parcel with a water lateral and a sewer lateral already stubbed to the property. At the time of construction of the duplex, the water lateral shall be split to have separate water shut off valves within the terrace for each individual unit. The sewer lateral shall also be split within the terrace to provide a separate sewer line from the terrace to each individual unit. The two residences are located on the same lot. These dwelling unit types may not be split into additional residences. Refer to the illustration below and to article I for setback requirements labeled in capital letters:
3.
Twin-house.
Description: These dwelling unit types consist of a single-family dwelling which is attached on one side to another single-family residence. A minimum building code required fire rated wall assembly division, separating living areas from the lowest level to flush against the underside of the roof is required between each dwelling unit. Upon the effective date of the ordinance from which this section is derived, all newly constructed twin homes are required to have a sanitary sewer lateral to the sanitary main and a public water lateral from the water main, for each individual dwelling unit. Separate water and sewer laterals, to the respective mains, are required when converting an existing duplex to a twin home or when building a new twin home. The two residences are located on separate lots. The twin house is distinguished from the duplex house merely by having each unit located on an individual lot or within a large development. These dwelling unit types may not be split into additional residences. A mutual maintenance agreement is recommended to be drafted and recorded between property owners to address for example; repair and/or replacement of the exterior components of the structure. Refer to the illustration on the following page and to article I for setback requirements labeled in capital letters:
4.
Two-flat house.
Description: This dwelling unit type consists of a single-family residence, which is in complete compliance with the State of Wisconsin Uniform Dwelling Code (UDC), which has been converted into a two-family residence. The two residences are both located on the same lot or within the same large development. This dwelling unit type may not be split into additional residences. Where permitted, this use is a conditional use and must be approved through the procedures of section 78-905. Refer to the illustration below and to article I for setback requirements labeled in capital letters:
5.
Townhouse.
Description: This dwelling unit type consists of attached, two-story, single-family residences, each having a private, individual access. This dwelling unit type is located on its own lot or within a large development and may not be split into additional residences. A minimum building code required fire rated wall assembly division, separating living areas from the lowest level through the roof, and individual sanitary sewer and public water laterals, are required between each dwelling unit. No more than six and no less than three townhouse dwelling units may be attached per group. All townhouse units within a development shall be located a minimum of 30 feet from the boundary of the development. Refer to the illustration below and to article I for setback requirements labeled in capital letters:
6.
Multiplex.
Description: This dwelling unit type consists of an attached, multi-family residence which has a private, individual exterior entrance. A minimum building code required fire rated wall assembly division, separating living areas from the lowest level through the roof, is required between each dwelling unit. No more than eight and no less than three multiplex dwelling units may be attached per group. All multiplex units within a development shall be located a minimum of 30 feet from the boundary of the development. Refer to the illustration below and to article I for setback requirements labeled in capital letters:
7.
Apartment.
Description: This dwelling unit type consists of an attached, multi-family residence which takes access from a shared entrance or hallway. A minimum building code required fire rated wall assembly division, separating living areas from the lowest level to the underside of the roof, is required between each dwelling unit. No less than three dwelling units may be located in a building. Refer to the illustration below and to article I for setback requirements labeled in capital letters:
8.
Mobile home.
Description: This dwelling unit type consists of a fully detached, single-family residence, which has not received a federal manufactured housing certificate and which is located on an individual lot or within or large development. This dwelling unit type may not be split into two or more residences. Within 30 days of occupancy, the owner shall remove the axle and install skirting per the requirements of the plan commission. Refer to the illustration below and to article I for setback requirements labeled in capital letters:
(b)
Reserved.
(c)
Reserved.
(d)
Mobile home residential subdivision.
Description: This land use is a form of residential development which is exclusively reserved for individually sold lots containing mobile home units. Each of the lots and mobile home units must meet the requirements for mobile homes listed in subsection 78-206(1)(a)8 of this chapter. Under this development option, approximately ten percent of a development's gross site area (GSA) can contain natural resource areas which must be protected (or other permanently protected green space areas), without a reduction in maximum gross density (MGD). (See note (f) below.)
1.
Regulations:
a.
Development shall be located so as to blend with adjacent residentially zoned areas to the greatest extent possible.
b.
Mobile home residential subdivisions shall comply with the same landscaping and bufferyard requirements as the Multi-Family (MR) District, as specified in section 78-610 of this chapter.
c.
No access shall be permitted to local residential streets.
(e)
Mobile home park residential development (Rental/Condo Park).
Description: This land use is a form of conventional residential development which is exclusively reserved for individually sold or rented air right pads containing mobile home units. Each of the lots and mobile home units must meet the requirements for mobile homes listed in subsection 78-206(1)(a)8 of this chapter. Under this development option, approximately ten percent of a development's gross site area (GSA) can contain natural resource areas which must be protected (or other permanently protected green space areas), without a reduction in maximum gross density (MGD). (See note (f) below.)
1.
Regulations:
a.
Development shall be located so as to blend with adjacent residentially zoned areas to the greatest extent possible.
b.
Mobile home park residential developments shall comply with the same landscaping and bufferyard requirements as the Multi-Family (MR) District, as specified in section 78-610 of this chapter.
c.
No access shall be permitted to local residential streets.
(f)
Note regarding percentage of green space and maximum density yield. This estimate is provided as a general rule of thumb for the convenience of the users of this chapter. Such a yield is not to be considered as ensured by the provisions of this chapter.
(2)
Agricultural land uses.
(a)
Cultivation.
Description: Cultivation land uses include all operations primarily oriented to the on-site, outdoor raising of plants. This land use includes trees which are raised as a crop to be replaced with more trees after harvesting, such as in nursery or Christmas tree operations. The raising of plants for consumption by farm animals is considered cultivation if said plants are consumed by animals which are located off-site.
1.
Regulations:
a.
On buildable lots, cultivation areas shall not exceed 20 percent of the lot's area.
b.
Cultivation areas shall not be located within the required front yard or street yard of any buildable or developed lot.
2.
Parking requirements: One space per employee on the largest work shift. (Note: Customer parking shall be provided based on land use.)
(b)
Husbandry.
Description: Husbandry land uses include all operations primarily oriented to the on-site raising and/or use of animals at an intensity of one animal unit or less (as defined in section 78-015) per acre.
1.
Regulations:
a.
Any building housing animals shall be located a minimum of 300 feet from any residentially zoned property, and 100 feet from all other lot lines.
b.
All outdoor animal containments (pastures, pens, and similar areas) shall be located a minimum of ten feet from any residentially zoned property.
2.
Parking requirements: One space per employee on the largest work shift. (Note: Agricultural land uses are hereby made exempt from the surfacing requirements of subsection 78-704(6)(a).
(c)
Intensive agriculture.
Description: Intensive agricultural land uses include all operations primarily oriented to the on-site raising and/or use of animals at an intensity equal to or exceeding one animal unit (as defined in section 78-015) per acre and/or agricultural activities requiring large investments in structures. Examples of such land uses include feed lots, hog farms, poultry operations, fish farms, commercial greenhouse operations and certain other operations meeting this criterion.
1.
Regulations:
a.
Shall not be located in, or adjacent to, an existing or platted residential subdivision.
b.
Shall be completely surrounded by a bufferyard with a minimum intensity of 1.00. (See section 78-610.)
c.
All buildings, structures, outdoor storage areas, and outdoor animal containments (pastures, pens and similar areas) shall be located a minimum of 300 feet from all residentially zoned property and 100 feet from all other lot lines.
d.
Shall be located in an area which is planned to remain commercially viable for agricultural land uses.
2.
Parking requirements: One space per employee on the largest work shift. (Note: Customer parking shall be provided based on land use.)
(d)
Agricultural service.
Description: Agricultural service land uses include all operations pertaining to the sale, handling, transport, packaging, storage, or disposal of agricultural equipment, products, by-products, or materials primarily used by agricultural operations. Examples of such land uses include agricultural implement sales, storage, or repair operations; feed and seed stores; agricultural chemical dealers and/or storage facilities; animal feed storage facilities; commercial dairies; food processing facilities; canning and other packaging facilities; and agricultural waste disposal facilities (except commercial composting uses, see subsection 78-206(5)(f)).
1.
Regulations:
a.
Shall not be located in, or adjacent to, an existing or platted residential subdivision.
b.
All buildings, structures, outdoor storage areas, and outdoor animal containments (pastures, pens and similar areas) shall be located a minimum of 100 feet from all lot lines.
c.
If within the RH District, shall be located in an area which is planned to remain commercially viable for agricultural land uses.
2.
Parking requirements: One space per employee on the largest work shift. (Note: Customer parking shall be provided based on land use.)
(e)
On-site agricultural retail.
Description: On-site agricultural retail land uses include land uses solely associated with the sale of agricultural products grown exclusively on the site. The sale of products grown or otherwise produced off-site shall not be permitted within on-site agricultural retail operations and such activity constitutes retail sales as a commercial land use. Packaging and equipment used to store, display, package or carry products for the convenience of the operation or its customers (such as egg cartons, baskets, containers, and bags) shall be produced off-site.
1.
Regulations:
a.
No structure or group of structures shall exceed 500 square feet in floor area.
b.
No structure shall exceed 12 feet in height.
c.
All structures shall meet all required setbacks for nonresidential land uses.
d.
Signage shall be limited to one on-site sign which shall not exceed 30 square feet in area.
e.
Such land use shall be served by no more than one driveway. Said driveway shall require a valid driveway permit.
f.
A minimum of one parking space shall be required for every 200 square feet of product display area.
g.
The sale of products which are grown or otherwise produced on non-adjacent property under the same ownership, or on property under different ownership, shall be prohibited.
h.
Said structure and fencing shall be located a minimum of 300 feet from any residentially zoned property.
2.
Parking requirements: One space per employee on the largest work shift and four spaces for customers. (Note: Customer parking shall be provided based on land use.)
(f)
Selective cutting.
Description: Selective cutting land uses include any operation associated with the one-time, continuing, or cumulative clearing, cutting, harvesting, or other destruction of trees (including by fire) where the extent of such activity is limited to an area (or combined areas) of less than or equal to 30 percent of the woodlands on the property (or up to 100 percent for developments approved prior to the effective date of this chapter). Selective cutting activity shall be limited to areas located within development pads which are designated on recorded plats or certified survey maps. The destruction of trees in an area in excess of this amount of the woodlands on the property shall be considered clear cutting, (see subsection (g), below).
1.
Regulations: Not applicable.
(g)
Clear cutting.
Description: Clear cutting land uses include the one-time, continuing, or cumulative clearing, cutting, harvesting, or other destruction (including by fire) of trees in an area (or combined areas) of more than 30 percent of the woodlands on a property (or up to 100 percent for developments approved prior to the effective date of this chapter). Clear cutting is permitted only as a conditional use. Any owner of property who intentionally clear cuts any area of his or her property or who intentionally solicits or causes another to intentionally clear cut any area of his or her property without first having secured a conditional use permit for such activity shall be subject to a forfeiture for such wrongful conduct and shall be required to implement the mitigation standards required for the destruction of woodlands solely at his/her expense, including costs associated with site inspection to confirm the satisfaction of mitigation requirements. Areas having been clear cut unintentionally as a result of fire shall not subject the owner of the property to a forfeiture for such non-approved clear cutting activity, but shall require the satisfaction of mitigation requirements at the owner's expense, including cost associated with site inspection to confirm the satisfaction of mitigation requirements.
1.
Regulations:
a.
Applicant shall demonstrate that clear cutting will improve the level of environmental protection on the subject property.
b.
Areas of the subject property which are clear cut beyond the limitations established above, shall be replanted per the requirements of section 78-609. (Referenced section requires the replanting of trees in other portions of the subject property-thereby freeing the currently wooded area for development while ensuring that the amount of required wooded area on the subject property remains constant.)
c.
Clear cutting shall not be permitted within a required bufferyard or landscaped area (see section 78-610), or within an area designated as permanently protected green space (see article VI).
(h)
Community garden.
Description: An area for cultivation and related activities divided into one or more plots to be cultivated by more than one operator or member. These areas may be on public or private lands.
1.
Regulations:
a.
All activity areas and structures shall comply with the required setbacks and height regulations for principal structures within the zoning district.
b.
Site plan submittal shall include the property owner, established sponsoring organization, and garden manager.
c.
Site plan which demonstrates considerations for and indicates locations of structures, materials storage, equipment storage, access for deliveries and pickups, water availability, shaded rest area, and availability of public parking.
d.
The following structures are permitted: tool sheds, shade pavilions, barns, rest-room facilities with composting toilets, and planting preparation houses, benches, bike racks, raised/accessible planting beds, compost bins, picnic tables, seasonal farm stands, fences, garden art, rain barrel systems, beehives, and children's play areas.
e.
Signs shall be limited to identification, information and directional signs, including sponsorship information where the sponsorship information is clearly secondary to other permitted information on any particular sign and shall not exceed a total aggregate area of 48 square feet.
f.
Fences shall comply with the regulations in section 78-718, except that chicken wire, woven wire, and related garden fencing shall be permitted without restriction around and within cultivated areas.
(i)
Market garden.
Description: An area for cultivation and related activities divided into one or more plots to be cultivated by more than one operator or member. These areas may be on public or private lands, with on-site sales of crops grown on-site.
1.
Regulations:
a.
All activity areas and structures shall comply with the required setbacks and height regulations for principal structures within the zoning district.
b.
Site plan submittal shall include the property owner, established sponsoring organization, and garden manager.
c.
Site plan which demonstrates considerations for and indicates locations of structures, materials storage, equipment storage, access for deliveries and pickups, water availability, shaded rest area, and availability of public parking.
d.
The following structures are permitted: tool sheds, shade pavilions, barns, rest-room facilities with composting toilets, and planting preparation houses, benches, bike racks, raised/accessible planting beds, compost bins, picnic tables, seasonal farm stands, fences, garden art, rain barrel systems, beehives, and children's play areas.
e.
Seasonal farm stands shall be removed from the premises or stored inside a building on the premises during that time of the year when the garden is not open for public use.
f.
Signs shall be limited to identification, information and directional signs, including sponsorship information where the sponsorship information is clearly secondary to other permitted information on any particular sign and shall not exceed a total aggregate area of 48 square feet.
g.
Fences shall comply with the regulations in section 78-718, except that chicken wire, woven wire, and related garden fencing shall be permitted without restriction around and within cultivated areas
(3)
Institutional land uses.
(a)
Passive outdoor public recreational.
Description: Passive outdoor public recreational land uses include all recreational land uses located on public property which involve passive recreational activities. Such land uses include arboretums, natural areas, wildlife areas, hiking trails, bike trails, cross country ski trails, horse trails, open grassed areas not associated with any particular active recreational land use (see (b), below), picnic areas, picnic shelters, gardens, fishing areas, and similar land uses.
1.
Parking requirements: One space per four expected patrons at maximum capacity for any use requiring over five spaces.
(b)
Active outdoor public recreational.
Description: Active outdoor public recreational land uses include all recreational land uses located on public property (including school district property) which involves active recreational activities. Such land uses include playcourts (such as tennis courts and basketball courts), playfields (such as ball diamonds, football fields, and soccer fields), tot lots, outdoor swimming pools, swimming beach areas, fitness courses, public golf courses, and similar land uses.
1.
Regulations:
a.
Facilities using night lighting and adjoining a residentially zoned property shall install and continually maintain a bufferyard with a minimum opacity of 0.60 (see section 78-610). Said bufferyard shall be located at the property line adjacent to said residentially zoned property.
b.
All structures and active recreational areas shall be located a minimum of 50 feet from any residentially zoned property.
c.
Facilities which serve a regional or community-wide function shall provide off-street passenger loading area if the majority of the users will be children.
2.
Parking requirements: One space per four expected patrons at maximum capacity for any use requiring over five spaces.
(c)
Indoor institutional.
Description: Indoor institutional land uses include all indoor public and not for profit recreational facilities (such as gyms, swimming pools, libraries, museums, and community centers), schools, churches, nonprofit clubs, nonprofit fraternal organizations, convention centers, hospitals, jails, prisons, and similar land uses.
1.
Regulations:
a.
Shall provide off-street passenger loading area if the majority of the users will be children (as in the case of a school, church, library, or similar land use).
b.
All structures shall be located a minimum of 50 feet from any residentially zoned property.
2.
Parking requirements: Generally, one space per three expected patrons at maximum capacity. However, see additional specific requirements below:
a.
Church: One space per five seats at the maximum capacity.
b.
Community or recreation center: One space per 300 square feet of gross floor area, or one space per four patrons to the maximum capacity, whichever is greater, plus one space per employee on the largest work shift.
c.
Funeral home: One space per three patron seats at the maximum capacity, plus one space per employee on the largest work shift.
d.
Hospital: One space per two patient beds, plus one space per staff doctor and one space per two employees on the largest work shift.
e.
Library or museum: One space per 300 square feet of gross floor area or one space per four seats to the maximum capacity, whichever is greater, plus one space per employee on the largest work shift.
f.
Elementary and Junior High: One space per two employees.
g.
Senior High: One space per two employees, plus 30 percent of maximum capacity.
h.
College or Trade School: One space per staff member on the largest work shift, plus one space per two students of the largest class attendance period.
(d)
Outdoor institutional.
Description: Outdoor institutional land uses include cemeteries, privately held permanently protected green space areas, country clubs, golf courses, and similar land uses.
1.
Regulations:
a.
Shall provide off-street passenger loading area if a significant proportion of the users will be children.
b.
All structures and actively used outdoor recreational areas shall be located a minimum of 50 feet from any residentially zoned property.
c.
Facilities using night lighting and adjoining a residentially zoned property shall install and continually maintain a bufferyard with a minimum opacity of 0.60 (see section 78-610). Said bufferyard shall be located at the property line adjacent to said residentially zoned property.
d.
Shall comply with section 78-905, standards and procedures applicable to all conditional uses.
2.
Parking requirements: Generally, one space per three expected patrons at maximum capacity. However, see additional specific requirements below:
a.
Cemetery: One space per employee, plus one space per three patrons to the maximum capacity of all indoor assembly areas.
b.
Golf course: 36 spaces per nine holes, plus one space per employee on the largest work shift, plus 50 percent of spaces otherwise required for any accessory uses (e.g., bars, restaurant).
c.
Swimming pool: One space per 30 percent of capacity in persons.
d.
Tennis court: Three spaces per court.
(e)
Public service and utilities.
Description: Public service and utilities land uses include all city, county, state and federal facilities (except those otherwise treated in this section), emergency service facilities such as fire departments and rescue operations, wastewater treatment plants, public and/or private utility substations, water towers, utility and public service related distribution facilities, and similar land uses.
1.
Regulations:
a.
Outdoor storage areas shall be located a minimum of 50 feet from any residentially zoned property.
b.
All outdoor storage areas adjoining a residentially zoned property shall install and continually maintain a bufferyard with a minimum opacity of .60 (see section 78-610). Said bufferyard shall be located at the property line adjacent to said residentially zoned property.
c.
All structures shall be located a minimum of 20 feet from any residentially zoned property.
d.
The exterior of all buildings shall be compatible with the exteriors of surrounding buildings.
2.
Parking requirements: One space per employee on the largest work shift, plus one space per company vehicle normally stored or parked on the premises, plus one space per 500 square feet of gross square feet of office area.
(f)
Institutional residential development.
Description: This land use is a form of residential development designed to accommodate institutional residential land uses, such as senior housing, retirement homes, assisted living facility, nursing homes, hospices, group homes, convents, monasteries, dormitories, nursing homes, convalescent homes, limited care facilities, rehabilitation centers, and similar land uses not considered to be community living arrangements under the provisions of Wisconsin Statutes 62.23. No individual lots are required, although the development shall contain a minimum of 800 square feet of gross site area for each occupant of the development. A minimum of 30 percent of the development's gross site area (GSA) shall be held as permanently protected green space.
1.
Regulations.
a.
Project shall provide an off-street passenger loading area at a minimum of one location within the development.
2.
Parking requirements:
a.
Senior housing or retirement housing: One-half space per dwelling unit.
b.
Assisted living facility or limited care facility: One space per two dwelling units.
c.
Monastery, convent or dormitory: One space per six residents, plus one space per employee on the largest work shift, plus one space per five chapel seats if the public may attend.
d.
Nursing home or hospice: One space per four patient beds, plus one space per two employees on the largest work shift, plus one space per doctor.
(g)
Community living arrangement. (1—8 residents)
Description: Community living arrangement land uses include all facilities provided for in Wisconsin Statutes 46.03(22), including child welfare agencies, group homes for children, foster homes, treatment foster homes, adult family homes, and community based residential facilities. Community living arrangements do not include day care centers (see separate listing); nursing homes (an institutional residential land use); general hospitals, special hospitals, prisons, or jails (all indoor institutional land uses). Community living arrangement facilities are regulated depending upon their capacity as provided for in Wisconsin Statutes 62.23(7)(i), provided any such regulations do not violate federal or state housing or anti-discrimination laws.
1.
Regulations:
a.
No community living arrangement shall be established within 2,500 feet of any other such facility regardless of its capacity unless planning commission and city council agree to a reduction in spacing.
The applicant shall demonstrate that the total capacity of all community living arrangements (of all capacities) in the city shall not exceed one percent of the city's population (unless specifically authorized by the common council following a public hearing).
Foster homes housing four or fewer children and licensed under Wisconsin Statutes 48.62 shall not be subject to a., above; and shall not be subject to, or count toward, the total arrived at in subsection b., above.
State Law reference— Section 62.23, Wisconsin Statutes.
2.
Parking requirements: Three spaces.
(h)
Community living arrangement. (9—15 residents)
Description: See subsection (g), above.
1.
Regulations:
a.
No community living arrangement shall be established within 2,500 feet of any other such facility, regardless of capacity unless planning commission and city council agree to a reduction in spacing.
b.
The applicant shall demonstrate that the total capacity of all community living arrangements (of all capacities) in the city shall not exceed one percent of the city's population (unless specifically authorized by the common council following a public hearing).
State Law reference— Section 62.23, Wisconsin Statutes.
2.
Parking requirements: Four spaces.
(i)
Community living arrangement. (16+ residents)
Description: See subsection (g), above.
1.
Regulations:
a.
No community living arrangement shall be established within 2,500 feet of any other such facility, regardless of capacity unless planning commission and city council agree to a reduction in spacing.
The total capacity of all community living arrangements (of all capacities) in the city shall not exceed one percent of the city's population (unless specifically authorized by the common council following a public hearing).
State Law reference— Section 62.23, Wisconsin Statutes.
2.
Parking requirements: One space per every three residents.
(4)
Commercial land uses.
(a)
Office.
Description: Office land uses include all exclusively indoor land uses whose primary functions are the handling of information or administrative services. Such land uses do not typically provide services directly to customers on a walk-in or on-appointment basis.
1.
Parking requirements: One space per 300 square feet of gross floor area.
(b)
Personal or professional service:
Description: Personal service and professional service land uses include all exclusively indoor land uses whose primary function is the provision of services directly to an individual on a walk-in or on-appointment basis. Examples of such uses include professional services, insurance or financial services, realty offices, medical offices and clinics, veterinary clinics, barber shops, beauty shops, and related land uses.
1.
Parking requirements: One space per 300 square feet of gross floor area.
(c)
Indoor sales or service.
Description: Indoor sales and service land uses include all land uses which conduct or display sales or rental merchandise or equipment, or non-personal or non-professional services, entirely within an enclosed building. This includes self-service facilities such as coin-operated laundromats. Depending on the zoning district, such land uses may or may not display products outside of an enclosed building. Such activities are listed as "Outdoor Display Incidental to Indoor Sales" under "Accessory Uses" in the Table of Land Uses, (subsection 78-206(8)(f)). A land use which contains both indoor sales and outdoor sales exceeding 15 percent of the total sales area of the building(s) on the property shall be considered as an outdoor sales land use, (See (d), below.). Artisan studios are regulated in subsection 78-206(4)(r).
1.
Regulations:
a.
Permitted uses shall include indoor sales and personal services which support office tenants such as office supply stores, copy centers and travel agencies.
2.
Parking requirements: One space per 300 square feet of gross floor area.
(d)
Outdoor display.
Description: Outdoor display land uses include all land uses which conduct sales, display sales or rental merchandise or equipment outside of an enclosed building. Example of such land uses include vehicle sales, vehicle rental, manufactured and mobile housing sales and monument sales. The area of outdoor sales shall be calculated as the area which would be enclosed by a required physical separation installed and continually maintained in the most efficient manner which completely encloses all materials displayed outdoors. Such land uses do not include the storage or display of inoperative vehicles or equipment, or other materials typically associated with a junkyard or salvage yard. (See subsection (5), below, also.) If a land use displays for sale or rent only a limited amount of product outside of an enclosed building, such use may instead be considered incidental to indoor sales under subsection 78-206(8)(f).
1.
Regulations:
a.
The display of items shall not be permitted in permanently protected green space areas, required landscaped areas, or required bufferyards.
b.
The display of items shall not be permitted within five feet of a property line.
c.
In no event shall the display of items reduce or inhibit the use or number of parking stalls provided on the property below the requirement established by the provisions of section 78-704. If the number of provided parking stalls on the property is already less than the requirement, such display area shall not further reduce the number of parking stalls already present.
d.
Display areas shall be separated from any circulation area by a minimum of five feet. This separation shall be clearly delimited by a physical separation such as a greenway, curb, fence, or line of planters, or by a clearly marked paved area.
e.
Signs, screening, enclosures, landscaping, or materials being displayed shall not interfere in any manner with either on-site or off-site traffic visibility, including potential traffic/traffic and traffic/pedestrian conflicts.
f.
Outdoor display shall be permitted during the entire calendar year, however, if goods are removed from the display area all support fixtures used to display the goods shall be removed within ten calendar days of the goods' removal.
g.
Inoperative vehicles or equipment, or other items typically stored or displayed in a junkyard or salvage yard, shall not be displayed for this land use.
h.
Facility shall provide a bufferyard with a minimum opacity of .60 along all borders of the display area abutting residentially zoned property, except per subsection e., above (See section 78-610.).
2.
Parking regulations: One space per 300 square feet of gross floor area.
(e)
Indoor maintenance service.
Description: Indoor maintenance services include all land uses which perform maintenance services (including repair) and contain all operations (except loading) entirely within an enclosed building. Because of outdoor vehicle storage requirements, vehicle repair and maintenance is considered a vehicle repair and maintenance land use, (see subsection 78-206(4)(q)).
1.
Parking requirements: One space per 300 square feet of gross floor area.
(f)
Outdoor maintenance service.
Description: Outdoor maintenance services include all land uses which perform maintenance services, including repair, and have all, or any portion, of their operations located outside of an enclosed building.
1.
Regulations:
a.
All outdoor activity areas shall be completely enclosed by a minimum six feet high fence. Such enclosure shall be located a minimum of 50 feet from any residentially zoned property and shall be screened from such property by a bufferyard with a minimum opacity of .60 (see Section 78-610).
2.
Parking requirements: One space per 300 square feet of gross floor area, or one space per each employee on the largest shift, whichever is less.
(g)
In-vehicle sales or service.
Description: In-vehicle sales and service land uses include all land uses which perform sales and/or services to persons in vehicles, or to vehicles which may or may not be occupied at the time of such activity (except vehicle repair and maintenance services, see subsection 78-206(4)(q)). Such land uses often have traffic volumes which exhibit their highest levels concurrent with peak traffic flows on adjacent roads. Examples of such land uses include drive-in, drive-up, and drive-through facilities, vehicular fuel stations, all forms of car washes. If performed in conjunction with a principal land use (for example, a convenience store, restaurant or bank), in-vehicle sales and service land uses shall be considered an accessory use (see subsection 78-206(8)(g)).
1.
Regulations:
a.
Clearly marked pedestrian crosswalks shall be provided for each walk-in customer access to the facility adjacent to the drive-through lane(s).
b.
The drive-through facility shall be designed so as to not impede or impair vehicular and pedestrian traffic movement, or exacerbate the potential for pedestrian/vehicular conflicts.
c.
In no instance shall a drive-through facility be permitted to operate which endangers the public safety, even if such land use has been permitted under the provisions of this section.
d.
The setback of any overhead canopy or similar structure shall be a minimum of ten feet from all street rights-of-way lines, a minimum of 20 feet from all residentially-zoned property lines, and shall be a minimum of five feet from all other property lines. The total height of any overhead canopy or similar structure shall not exceed 20 feet per the measurement of roof height.
e.
All vehicular areas of the facility shall provide a surface paved with concrete or bituminous material which is designed to meet the requirements of a minimum four ton axle load.
f.
Facility shall provide a bufferyard with a minimum opacity of .60 along all property borders abutting residentially zoned property (section 78-610).
g.
Interior curbs shall be used to separate driving areas from exterior fixtures such as fuel pumps, vacuums, menu boards, canopy supports and landscaped islands. Said curbs shall be a minimum of six inches high and be of a non-mountable design. No curb protecting an exterior fixture shall be located closer than 25 feet to all property lines.
2.
Parking requirements: Refer to the parking requirements of the other land use activities on the site (such as indoor sales and service for a gas station/convenience store, or office for a bank). Each drive-up lane shall have a minimum stacking length of 100 feet behind the pass through window and 40 feet beyond the pass through window. This requirement may be adjusted by the plan commission through the conditional use process.
(h)
Indoor commercial entertainment.
Description: Indoor commercial entertainment land uses include all land uses which provide entertainment services primarily within an enclosed building. Outdoor seating or patio areas associated with a proposed indoor commercial entertainment land use shall be allowed subject to city approval of a site plan showing any such proposed outdoor seating or patio area. Such activities often have operating hours which extend significantly later than most other commercial land uses. Examples of such land uses include restaurants, taverns, theaters, health or fitness centers, all forms of training studios (dance, art, martial arts, etc.), bowling alleys, arcades, roller rinks, and pool halls.
1.
Regulations:
a.
If located on the same side of the building as abutting residentially zoned property, no customer entrance of any kind shall be permitted within 150 feet, or as far as possible, of a residentially zoned property.
b.
Facility shall provide bufferyard with minimum opacity of .60 along all borders of the property abutting residentially zoned property (see section 78-610).
2.
Parking requirements: One space per every three patron seats or lockers (whichever is greater); or one space per three persons at the maximum capacity of the establishment; (whichever is greater).
(i)
Outdoor commercial entertainment.
Description: Outdoor commercial entertainment land uses include all land uses which provide entertainment services partially or wholly outside of an enclosed building. Such activities often have the potential to be associated with nuisances related to noise, lighting, dust, trash and late operating hours. Examples of such land uses include outdoor commercial swimming pools, driving ranges, miniature golf facilities, amusement parks, drive-in theaters, go-cart tracks, and racetracks.
1.
Regulations:
a.
Activity areas shall not be located closer than 300 feet to a residentially zoned property.
b.
Facility shall provide bufferyard with minimum opacity of .80 along all borders of the property abutting residentially zoned property (section 78-610).
c.
Activity areas (including drive-in movie screens) shall not be visible from any residentially-zoned property.
2.
Parking requirements: One space for every three persons at the maximum capacity of the establishment.
(j)
Commercial animal boarding.
Description: Commercial animal boarding facility land uses include land uses which provide short-term and/or long-term boarding for animals. An example of this land use is a commercial kennel. Exercise yards, fields, training areas, and trails associated with such land uses are considered accessory to such land uses and do not require separate consideration.
1.
Regulations:
a.
Each unsupervised animal shall be provided with their own indoor containment area. For supervised animals, a minimum of one containment area or five percent of all animals shall be provided a containment area, whichever is greater.
b.
Special events such as shows, exhibitions, and contests shall only be permitted when a temporary use permit has been secured. (See Section 78-906.)
2.
Parking requirements: One space per every 1,000 square feet of gross floor area.
(k)
Commercial indoor lodging.
Description: Commercial indoor lodging facilities include land uses which provide overnight housing in individual rooms or suites of rooms, each room or suite having a private bathroom. Such land uses may provide in-room or in-suite kitchens, and may also provide indoor recreational facilities for the exclusive use of their customers. Restaurant, arcades, fitness centers, and other on-site facilities available to non-lodgers are not considered accessory uses and therefore require review as a separate land use.
1.
Regulations:
a.
If located on the same side of a building as abutting residentially zoned property, no customer entrance of any kind shall be permitted within 100 feet of a residentially zoned property.
b.
Facility shall provide a bufferyard with a minimum opacity of .60 along all property borders abutting residentially zoned property (see section 78-610).
c.
Within the PO District, each and every room must take primary access via an individual interior door, and may not be accessed via an external balcony, porch or deck, except for emergency purposes.
2.
Parking requirements: One space per bedroom, plus one space for each employee on the largest work shift.
(l)
Bed and breakfast establishment.
Description: Bed and breakfast establishments are exclusively indoor lodging facilities which provide meals only to paying lodgers. Such land uses may provide indoor recreational facilities for the exclusive use of their customers.
1.
Regulations:
a.
If alcoholic beverages of any kind are to be served on the premises, the owner of the establishment shall first obtain the appropriate license in accordance with city and state regulations.
b.
Each such establishment shall be inspected to verify that the land use meets all applicable regulations.
c.
One sign, with a maximum area of 20 square feet and a maximum height of 6 feet, shall be permitted on the property.
d.
No premises shall be utilized for a bed and breakfast operation unless there are at least two exits to the outdoors from such premises. Rooms utilized for sleeping shall have a minimum size of 100 square feet for two occupants with an additional 30 square feet for each additional occupant to a maximum of four occupants per room. Each sleeping room used for the bed and breakfast operation shall have a separate operational smoke detector alarm, as required in the building code. One lavatory and bathing facility shall be required for every ten occupants, in addition to the owner/occupants personal facilities.
e.
The dwelling unit in which the bed and breakfast takes place shall be the principal residence of the operator/owner and said operator/owner shall live on the premises when the bed and breakfast operation is active.
f.
Only the meal of breakfast shall be served to overnight guests.
g.
The maximum stay for any occupants of bed and breakfast operations shall be 14 days.
h.
It shall be unlawful for any persons to operate a bed and breakfast operation as defined and as permitted in the Municipal Code of the City of Stoughton without first having obtained a conditional use permit.
i.
Application requirements. Applicants for a conditional use permit to operate a bed and breakfast shall submit a floor plan of the single-family dwelling unit illustrating that the proposed operation will comply with the city zoning ordinance as amended, other applicable city codes and ordinances, and within the terms of this chapter.
j.
Public nuisance violations. Bed and breakfast operations shall not be permitted whenever the operation endangers, or offends, or interferes with the safety or rights of others so as to constitute a nuisance.
2.
Parking requirements: One space per each bedroom in addition to requirements for principal residents.
(m)
Group day care center (nine or more children).
Description: Group day care centers are land uses in which qualified persons provide child care services for nine or more children. Examples of such land uses include day care centers and nursery schools. Such land uses shall not be located within a residential building. Such land uses may be operated on a for-profit or a not for profit basis. Such land uses may be operated in conjunction with another principal land use on the same environs, such as a church, school, business, or civic organization. In such instances, group day care centers are not considered as accessory uses and therefore require review as a separate land use.
1.
Regulations:
a.
Facility shall provide a bufferyard with a minimum opacity of .50 along all property borders abutting residentially zoned property (see section 78-610).
b.
Property owner's permission is required as part of the conditional use permit application.
2.
Parking requirements: One space per five students, plus one space for each employee on the largest work shift.
(n)
Campground.
Description: Campgrounds include any facilities designed for overnight accommodation of persons in tents, travel trailers, or other mobile or portable shelters or vehicles.
1.
Regulations:
a.
Facility shall provide a bufferyard with a minimum opacity of .70 along all property borders abutting residentially zoned property (see section 78-610).
2.
Parking requirements: One and one-half spaces per campsite.
(o)
Boarding house.
Description: Boarding homes include any residential use renting rooms which do not contain private bathroom facilities (with the exception of approved bed and breakfast facilities).
1.
Regulations:
a.
Facility shall provide a bufferyard with a minimum opacity of .60 along all property borders abutting residentially zoned property (see Section 78-610).
b.
Shall provide a minimum of one on-site parking space for each room for rent.
c.
Shall be located in an area of transition from residential land uses to nonresidential land uses.
d.
Shall comply with section 78-905, applicable to all conditional uses.
2.
Parking requirements: One space per room for rent, plus one space per each employee on the largest work shift.
(p)
Sexually-oriented land uses.
Description: Sexually-oriented land uses include any facility oriented to the display of sexually-oriented materials such as videos, movies, slides, photos, books, or magazines; or actual persons displaying and/or touching sexually specified areas — including the provision of body piercing or tattooing services to "sexually specified areas." For the purpose of this chapter, "sexually specified areas" includes any one or more of the following: genitals, anal area, female areola or nipple; and "sexually-oriented material" includes any media which displays sexually specified area(s). Establishments which sell or rent sexually-oriented materials shall not be considered sexually-oriented if the area devoted to sale of said materials is less than five percent of the sales area devoted to non-sexually-oriented materials and if such materials are placed in generic covers or otherwise obscured areas.
NOTE: The incorporation of this subsection into this chapter is designed to reflect the common council's official finding that sexually-oriented commercial uses have a predominant tendency to produce certain undesirable secondary effects on the surrounding community, as has been demonstrated in other, similar jurisdictions. Specifically, the common council is concerned with the potential for such uses to limit: the attractiveness of nearby locations for new development, the ability to attract and/or retain customers, and the ability to market and sell nearby properties at a level consistent with similar properties not located near such facilities. It is explicitly not the intent of this Subsection to suppress free expression by unreasonably limiting alternative avenues of communication, but rather to balance the need to protect free expression opportunities with the need to implement the city's Comprehensive Plan and protect the character and integrity of its commercial and residential neighborhoods.
1.
Regulations:
a.
Shall be located a minimum of 1,000 feet from any agriculturally zoned property or residentially zoned property; and shall be located a minimum of 1,000 feet from any school, church, or outdoor recreational facility.
b.
Exterior building appearance and signage shall be designed to ensure that the use does not detract from the ability of businesses in the vicinity to attract customers, nor affect the marketability of properties in the vicinity for sale at their assessed values.
2.
Parking requirements: One space per 300 square feet of gross floor area, or one space per person at the maximum capacity of the establishment (whichever is greater).
(q)
Vehicle repair and maintenance service.
Description: Vehicle repair and maintenance services include all land uses which perform maintenance services (including repair) to motorized vehicles and contain all operations (except vehicle storage) entirely within an enclosed building.
1.
Regulations:
a.
Storage of abandoned vehicles is prohibited.
b.
Facility shall provide a bufferyard with a minimum opacity of .60 along all property borders abutting residentially zoned property (section 78-610).
2.
Parking requirements: One space per 300 square feet of gross floor area. Adequate on-site parking is required for all customer and employee vehicles.
(r)
Artisan studios and artisan production shops.
Description: A building or portion thereof used for the preparation, display and sale of individually crafted artwork, jewelry, furniture, sculpture, pottery, leathercraft, hand-woven articles, and related items, as either a principal use or accessory use. A studio is used by no more than three artists or artisans. An artisan production shop is an artisan studio used by more than three artists or artisans.
1.
Regulations:
a.
Facility shall provide a bufferyard with a minimum opacity of .20 along all property borders abutting residentially zoned property (section 78-610).
2.
Parking requirements: One space per 300 square feet of gross floor area. Adequate on-site parking is required for all customer and employee vehicles. Not applicable in the CB—Central Business district.
(5)
Storage or disposal land uses.
(a)
Indoor storage or wholesaling.
Description: Indoor storage and wholesaling land uses are primarily oriented to the receiving, holding, and shipping of packaged materials for a single business or a single group of businesses. With the exception of loading and parking facilities, such land uses are contained entirely within an enclosed building. Examples of this land use include conventional warehouse facilities, long-term indoor storage facilities, and joint warehouse and storage facilities. Retail outlets associated with this use shall be considered accessory uses per subsection 78-206(8)(h), below.
1.
Parking requirements: One space per 2,000 sf of gross floor area.
(b)
Outdoor storage or wholesaling.
Description: Outdoor storage and wholesaling land uses are primarily oriented to the receiving, holding, and shipping of packaged materials for a single business or a single group of businesses. Such a land use, in which any activity beyond loading and parking is located outdoors, is considered an outdoor storage and wholesaling land use. Examples of this land use include contractors' storage yards, equipment yards, lumber yards, coal yards, landscaping materials yard, construction materials yards, and shipping materials yards. Such land uses do not include the storage of inoperative vehicles or equipment, or other materials typically associated with a junkyard or salvage yard. (See subsection (5)(d).
1.
Regulations:
a.
All outdoor storage areas shall be completely enclosed by any permitted combination of buildings, structures, walls and fencing. Such walls and fencing shall be a minimum of eight feet in height and shall be designed to completely screen all stored materials from view from non-industrialized areas at an elevation of five feet above the grade of all adjacent properties and rights-of-way. Said walls or fencing shall be screened from residentially zoned property by a bufferyard with a minimum opacity of .80.
b.
The storage of items shall not be permitted in permanently protected green space areas (see section 78-608).
c.
The storage of items shall not be permitted in required frontage landscaping or bufferyard areas.
d.
In no event shall the storage of items reduce or inhibit the use or number of parking stalls provided on the property below the requirement established by the provisions of section 78-704. If the number of provided parking stalls on the property is already less than the requirement, such storage area shall not further reduce the number of parking stalls already present.
e.
Storage areas shall be separated from any vehicular parking or circulation area by a minimum of ten feet. This separation shall be clearly delimited by a physical separation such as a greenway, curb, fence, or line of planters, or by a clearly marked paved area.
f.
Materials being stored shall not interfere in any manner with either on-site or off-site traffic visibility, including potential traffic/traffic and traffic/pedestrian conflicts.
g.
Inoperative vehicles or equipment, or other items typically stored in a junkyard or salvage yard, shall not be stored under the provisions of this land use.
h.
Facility shall provide a bufferyard with a minimum opacity of .60 along all property borders abutting residentially zoned property (see section 78-610).
i.
All outdoor storage areas shall be located no closer to a residentially zoned property than the required minimum setback for buildings on the subject property.
2.
Parking requirements: One space for every 10,000 square feet of gross storage area, plus one space per each employee on the largest work shift.
(c)
Personal storage facility.
Description: Personal storage facilities are land uses oriented to the indoor storage of items entirely within partitioned buildings having an individual access to each partitioned area. Such storage areas may be available on either a condominium or rental basis. Also known as "mini-warehouses".
1.
Regulations:
a.
Facility shall be designed so as to minimize adverse visual impacts on nearby developments. The color, exterior materials, and orientation of proposed buildings and structures shall complement surrounding development.
b.
Facility shall provide a bufferyard with a minimum opacity of .80 along all property borders abutting residentially zoned property (see section 78-610).
c.
Shall comply with section 78-905, standards and procedures applicable to all conditional uses.
d.
No electrical power shall be run to the storage facilities, except for exterior lighting.
2.
Parking requirements: One space for each employee on the largest work shift.
(d)
Junkyard or salvage yard.
Description: Junkyard or salvage yard facilities are any land or structure used for a salvaging operation including but not limited to: the above-ground, outdoor storage and/or sale of waste paper, rags, scrap metal, and any other discarded materials intended for sale or recycling; and/or the collection, dismantlement, storage, or salvage of two or more unlicensed and/or inoperative vehicles. Recycling facilities involving on-site outdoor storage of salvage materials are included in this land use.
1.
Regulations:
a.
Facility shall provide a bufferyard with a minimum opacity of 1.00 along all property borders abutting residentially zoned property (see section 78-610).
b.
All buildings, structures, outdoor storage areas, and any other activity areas shall be located a minimum of 100 feet from all lot lines.
c.
In no instance shall activity areas be located within a required frontage landscaping or bufferyard areas.
d.
Shall not involve the storage, handling or collection of hazardous materials, including any of the materials listed in section 78-717.
2.
Parking requirements: One space for every 20,000 square feet of gross storage area, plus one space for each employee on the largest work shift.
(e)
Waste disposal facility.
Description: Waste disposal facilities are any areas used for the disposal of solid wastes including those defined by Wisconsin Statutes 289.01(33), but not including composting operations (see subsection (f), below).
1.
Regulations:
a.
Shall comply with all county, state and federal regulations.
b.
Facility shall provide a bufferyard with a minimum opacity of 1.00 along all borders of the property (see section 78-610).
c.
All buildings, structures, and activity areas shall be located a minimum of 300 feet from all lot lines.
d.
Operations shall not involve the on-site holding, storage or disposal of hazardous materials (as defined by section 78-717) in any manner.
e.
Required site plans shall include detailed site restoration plans, which shall include at minimum, detailed grading and revegetation plans, and a detailed written statement indicating the timetable for such restoration. A surety bond, in an amount equivalent to 110 percent of the costs determined to be associated with said restoration (as determined by a third party selected by the city), shall be filed with the city by the petitioner (subject to approval by the city administrator), and shall be held by the city for the purpose of ensuring that the site is restored to its proposed condition. (The requirement for said surety is waived for waste disposal facilities owned by public agencies.)
2.
Parking requirements: One space for each employee on the largest work shift.
(f)
Composting operation.
Description: Composting operations are any land uses devoted to the collection, storage, processing and or disposal of vegetation.
1.
Regulations:
a.
Shall comply with all county, state and federal regulations.
b.
Facility shall provide a bufferyard with a minimum opacity of 1.00 along all borders of the property occupied by non-agricultural land uses (see section 78-610).
c.
All buildings, structures, and activity areas shall be located a minimum of 100 feet from all lot lines.
d.
No food scraps or other vermin-attracting materials shall be processed, stored or disposed of on-site.
e.
Operations shall not involve the on-site holding, storage or disposal of hazardous wastes as defined by state statutes in any manner.
2.
Parking requirements: One space for each employee on the largest work shift.
(6)
Transportation land uses.
(a)
Off-site parking lot.
Description: Off-site parking lots are any areas used for the temporary parking of vehicles which are fully registered, licensed and operative. See also section 78-704 for additional parking regulations.
1.
Regulations:
a.
Access and vehicular circulation shall be designed so as to discourage cut-through traffic.
(b)
Airport/heliport.
Description: Airports and heliports are transportation facilities providing takeoff, landing, servicing, storage and other services to any type of air transportation. The operation of any type of air vehicle (including ultralight aircraft, hang gliders, parasails, and related equipment, but excepting model aircraft) within the jurisdiction of this chapter shall occur only in conjunction with an approved airport or heliport.
1.
Regulations:
a.
All buildings, structures, outdoor airplane or helicopter storage areas, and any other activity areas shall be located a minimum of 100 feet from all lot lines.
b.
Facility shall provide a bufferyard with a minimum opacity of 1.00 along all borders of the property not otherwise completely screened from activity areas by buildings or structures (see section 78-610).
2.
Parking requirements: One space per each employee on the largest work shift, plus one space per every five passengers based on average daily ridership.
(c)
Freight terminal.
Description: Freight terminals are defined as land and buildings representing either end of one or more truck carrier line(s) which may have some or all of the following facilities: yards, docks, management offices, storage sheds, buildings and/or outdoor storage areas, freight stations, and truck maintenance and repair facilities, principally serving several or many businesses and always requiring trans-shipment.
1.
Regulations:
a.
Facility shall provide a bufferyard with a minimum opacity of 1.00 along all property borders abutting residentially zoned property (see section 78-610).
b.
All buildings, structures, outdoor storage areas, and any other activity areas shall be located a minimum of 100 feet from all lot lines abutting residentially zoned property.
c.
In no instance shall activity areas be located within a required frontage landscaping or bufferyard areas.
2.
Parking requirements: One space per each employee on the largest work shift.
(d)
Distribution center.
Description: Distribution centers are facilities oriented to the short-term indoor storage and possible repackaging and reshipment of materials involving the activities and products of a single user. Retail outlets associated with this use shall be considered accessory uses per subsection 78-206(8)(h), below.
1.
Regulations:
a.
Facility shall provide a bufferyard with a minimum opacity of 1.00 along all property borders abutting residentially zoned property (see section 78-610).
b.
All buildings, structures, outdoor storage areas, and any other activity areas shall be located a minimum of 100 feet from all lot lines abutting residentially zoned property.
c.
In no instance shall activity areas be located within a required frontage landscaping or bufferyard areas.
2.
Parking requirements: One space per each employee on the largest work shift.
(7)
Industrial land uses.
(a)
Light industrial land use.
Description: Light industrial land uses are industrial facilities at which all operations (with the exception of loading operations): 1) are conducted entirely within an enclosed building; 2) are not potentially associated with nuisances such as odor, noise, heat, vibration and radiation which are detectable at the property line; 3) do not pose a significant safety hazard (such as danger of explosion); and 4) comply with all of the performance standards listed for potential nuisances in article VII. Alcoholic beverage production qualifies as a light industrial use, but only when conducted incidental to indoor sales or service pursuant to subsection (8)(i), below. Light industrial land uses may conduct retail sales activity as an accessory use provided that the requirements of subsection (8)(h), below, are complied with.
1.
Regulations:
a.
All activities, except loading and unloading, shall be conducted entirely within the confines of a building.
2.
Parking requirements: One space per each employee on the largest work shift.
(b)
Heavy industrial land use.
Description: Heavy industrial land uses are industrial facilities which do not comply with one or more of the following criteria: 1) are conducted entirely within an enclosed building; 2) are not potentially associated with nuisances such as odor, noise, heat, vibration, and radiation which are detectable at the property line; and 3) do not pose a significant safety hazard (such as danger of explosion). More specifically, heavy industrial land uses are industrial land uses which may be wholly or partially located outside of an enclosed building; may have the potential to create certain nuisances which are detectable at the property line; and may involve materials which pose a significant safety hazard. However, in no instance shall a heavy industrial land use exceed the performance standards listed in article VII. Examples of heavy industrial land uses include meat product producers; alcoholic beverage producers; paper, pulp or paperboard producers; chemical and allied product producers (except drug producers) including poison or fertilizer producers; petroleum and coal product producers; asphalt, concrete or cement producers; tanneries; stone, clay or glass product producers; primary metal producers; heavy machinery producers; electrical distribution equipment producers; electrical industrial apparatus producers; transportation vehicle producers; commercial sanitary sewage treatment plants; railroad switching yards; and recycling facilities not involving the on-site storage of salvage materials.
1.
Regulations:
a.
Facility shall provide a bufferyard with a minimum opacity of 1.00 along all borders of the property other than permanent open space abutting properties which are not zoned Heavy Industrial (see section 78-610).
b.
All outdoor activity areas shall be located a minimum of 100 feet from residentially zoned property. No materials shall be stacked or otherwise stored so as to be visible over bufferyard screening elements.
2.
Parking requirements: One space per each employee on the largest work shift.
(c)
In zoning districts where single-family uses are permitted principal uses, or on parcels adjacent to a parcel where single-family uses are permitted principal uses, the setback requirement for a mobile service support structure shall be equal to the height of the mobile service support structure.
(d)
Extraction use.
Description: Extraction uses include and land uses involving the removal of soil, clay, sand, gravel, rock, minerals, peat, or other material in excess of that required for approved on-site development or agricultural activities.
1.
Regulations:
a.
Shall receive approval from the county prior to action by the City of Stoughton, and shall comply with all county, state and federal regulations.
b.
Facility shall provide a bufferyard with a minimum opacity of 1.00 along all borders of the property other than permanent open space (see section 78-610).
c.
All buildings, structures, and activity areas shall be located a minimum of 300 feet from all lot lines.
d.
Required site plans shall include detailed site restoration plans, which shall include at minimum, detailed grading and revegetation plans, and a detailed written statement indicating the timetable for such restoration. A surety bond, in an amount equivalent to 110 percent of the costs determined to be associated with said restoration (as determined by a third party selected by the city), shall be filed with the city by the petitioner (subject to approval by the zoning administrator), and shall be held by the city for the purpose of ensuring that the site is restored to its proposed condition. (The requirement for said surety is waived for publicly-owned waste disposal facilities.)
2.
Parking requirements: One space per each employee on the largest work shift.
(8)
Accessory land uses and structures. Accessory uses and structures shall be incidental to the principal activity conducted on the subject property. Only those accessory uses and structures listed below shall be permitted within the jurisdiction of this chapter. With the exception of a commercial apartment (see (a), below), or a farm residence (see (b), below), in no instance shall an accessory use, cellar, basement, tent or recreational trailer be used as a residence. With the exception of farm buildings, accessory buildings located within a residential district shall be constructed or finished in a complimentary architectural style and with complimentary materials to the principal residential buildings in the neighborhood. Accessory structures shall not be located between a principal building and a street frontage on the same lot, nor within any required front yard or street side yard, except when there is a shoreyard. In instances where there is a shoreyard, shoreyards shall be treated as front yards and street yards as rear yards, whereby accessory structures may be located between a principal building and a street frontage on the same lot. Garden and landscape features such as walks, steps, terraces, trellises, arbors, bird feeders/baths, swing sets, sandboxes, compost storage, sprinkler systems, landscape battery operated lighting, clothes lines, and similar features are exempt from zoning and permitting requirements except these features may not be placed within an easement designed to convey electric, water, wastewater or stormwater and shall be setback a minimum of four feet from any private property line. Additionally, these features must not exceed one-half the maximum height requirement for an accessory structure for the specific district where located and shall not exceed 200 square feet in area. Stand alone, roofed structures such as a gazebo or shed, and structures such as a pergola that are attached to a principal structure or any other accessory structure shall meet all zoning and permitting requirements.
(a)
Upper story dwelling unit.
Description: Upper story dwelling units are dwelling units which are located directly above the ground floor of a building used for an office, commercial, or institutional land use (as designated in subsection (4), above). Residential uses will be permitted on the ground floor of a building used for an office, commercial, or institutional land use, but may not be within the first 24 feet of the ground floor measured from the front of the building.
1.
Regulations:
a.
The gross floor area devoted to commercial apartments shall be counted toward the floor area of a nonresidential development.
b.
A minimum of one off-street parking space shall be provided for each bedroom within a commercial apartment. Parking spaces provided by nonresidential land uses on the site may be counted for this requirement with the approval of the zoning administrator.
(b)
Farm residence.
Description: A farm residence is a single-family detached dwelling unit located on the same property as any of the principal agricultural land uses listed in Subsection (2), above.
(c)
Detached residential garage, carport, utility shed; gazebo and similar accessory structures.
Description: A detached private residential garage or carport is a structure used primarily to shelter parked passenger vehicles. A utility shed is a structure used primarily to store residential maintenance equipment of the subject property. A gazebo is a small roofed structure that is used for outdoor entertaining, relaxing and dining. A greenhouse shall be considered an accessory structure. See section 78-408 for requirements applicable to legal, nonconforming garages. Garages, carports, utility sheds; gazebos and similar structures in excess of 900 square feet of gross floor area are not permitted in residential districts except as conditional uses in the MR, RH and ER-1 districts (also see subsection 78-206(8)).
1.
Regulations:
a.
One detached residential garage, and two other accessory structures, shall be permitted by right.
b.
A conditional use permit is required for:
A.
A combination of accessory structures exceeding a total of 1,000 square feet; or
B.
More than three accessory structures.
c.
A greenhouse shall be limited to 120 square feet and shall not be used for storage.
(d)
Company cafeteria.
Description: A company cafeteria is a food service operation which provides food only to company employees and their guests, which meets state food service requirements, and is located on the same property as a principal land use engaged in an operation other than food service.
(e)
Company provided on-site recreation.
Description: A company provided on-site recreational facility is any active or passive recreational facility located on the same site as a principal land use, and which is reserved solely for the use of company employees and their guests.
1.
Regulations:
a.
All structures and actively used outdoor areas shall be located a minimum of 50 feet from any residentially zoned property.
b.
Outdoor recreation facilities using night lighting and adjoining a residentially zoned property shall install and continually maintain a bufferyard with a minimum opacity of 0.60 (see section 78-610). Said bufferyard shall be located at the property line adjacent to said residentially zoned property.
c.
Facilities using night lighting shall require a conditional use permit.
(f)
Outdoor display incidental to indoor sales and service (more than 12 days).
Description: See subsection 78-206(4)(d).
1.
Regulations:
a.
Shall comply with all conditions of subsection 78-206(4)(d).
b.
Display area shall not exceed 25 percent of gross floor area of principal building on the site.
(g)
In-vehicle sales and services incidental to on-site principal land use.
Description: See subsection 78-206(4)(g).
1.
Regulations:
a.
Shall comply with all conditions of subsection 78-206(4)(g).
(h)
Indoor sales incidental to storage or light industrial land use.
Description: These land uses include any retail sales activity conducted exclusively indoors which is incidental to a principal land use such as warehousing, wholesaling or any light industrial land use, on the same site.
1.
Regulations:
a.
Adequate parking, per the requirements of section 78-704, shall be provided for customers. Said parking shall be in addition to that required for customary light industrial activities.
b.
The total area devoted to sales activity shall not exceed 25 percent of the total area of the buildings on the property. Areas devoted to artisan studio uses such as custom ceramics, glass, wood, paper, fabric, and similar crafts may exceed 5,000 square feet with the granting of a conditional use permit for such use.
c.
Shall provide restroom facilities directly accessible from retail sales area.
d.
Retail sales shall be physically separated by a wall from other activity areas.
(i)
Light industrial activities incidental to indoor sales or service land use.
Description: These land uses include any light industrial activity conducted exclusively indoors which is incidental to a principal land use such as indoor sales or service, on the same site.
1.
Regulations:
a.
The total area devoted to light industrial activity shall not exceed 15 percent of the total area of the buildings on the property, or 5,000 square feet, whichever is less.
b.
Production area shall be physically separated by a wall from other activity areas and shall be soundproofed to the level required by section 78-709 for all adjacent properties.
(j)
Home occupation.
Description: It is the intent of this section to provide a means to accommodate a small home-based family or professional business without the necessity of a rezoning from a residential to a business district. Approval of an expansion of a home occupation at a future time beyond the limitations of this section is not to be anticipated; relocation of the business to an area that is appropriately zoned may be necessary. Home occupations are economic activities performed within any single-family detached residence which comply with the following requirements. Examples include personal and professional services, and handicrafts, which comply with all of the following requirements:
1.
Regulations:
a.
The use is to be clearly incidental to residential use.
b.
The area used to conduct the home occupation shall not exceed 25 percent of the improved square footage, excluding the garage, and the occupation shall be conducted within the principal building, except for sales of home grown produce grown on site.
c.
Any home occupation shall be carried on only by a member of the immediate family residing on the premises.
d.
No activity, materials, goods or equipment incidental to the home occupation shall be externally visible, except for home grown produce grown on site.
e.
No home occupation shall endanger the public health and safety and shall not interfere with other parcels in the neighborhood.
f.
No mechanical equipment may be used which creates a disturbance such as noise, dust, odor or electrical disturbance.
g.
No articles shall be sold or offered for sale on the premises, except for home grown produce grown on site.
h.
No mechanical or electrical equipment shall be installed or maintained other than such as customarily incidental to domestic use.
i.
There shall be no more than one temporary sign permitted per dwelling unit for sales of home grown produce grown on site. No such sign shall exceed four square feet in area, two feet in height or two feet in width and shall be placed on private property where the produce is grown. The sign shall only be visible when the produce is offered for sale.
j.
For this section, "Produce" shall be defined as: To grow agricultural products such as vegetables and fruit on site.
k.
This section does not apply to other permitted or conditional uses in residential districts.
l.
Only one sign for professional services shall be allowed. Such sign shall not be illuminated and shall not exceed three square feet.
(k)
Family day care home (four to eight children).
Description: Family day care homes are occupied residences in which a qualified person or persons provide child care for four to eight children. The care of less than four children is not subject to the regulations of this chapter.
State Law reference— Section 66.1017(1)(a), Wisconsin Statutes.
(l)
Intermediate day care home (nine to 15 children).
Description: Intermediate day care homes are occupied residences in which a qualified person or persons provide child care for nine to fifteen children.
State Law reference— Section 48.65, Wisconsin Statutes.
(m)
Migrant labor camp. Migrant labor camps include any facility subject to the regulation of Wisconsin Statutes 103.90(3)(a).
1.
Regulations:
a.
Shall be surrounded by a bufferyard with a minimum opacity of .60 along all property lines adjacent to all properties in residential, office, or business zoning districts (see section 78-610).
b.
Migrant labor camp shall be an accessory use to an active principal use, under the same ownership, which is located within the city.
(n)
On-site parking lot.
Description: On-site parking lots are any areas located on the same site as the principal land use which are used for the temporary parking of vehicles which are fully registered, licensed, and operative. Refer also to section 78-704.
1.
Regulations:
a.
Access and vehicular circulation shall be designed so as to discourage cut-through traffic.
(o)
Private residential recreational facility.
Description: This land use includes all active outdoor recreational facilities located on a private residential lot which are not otherwise listed in the Table of Land Uses in the Appendix. Materials and lighting shall limit light levels at said property line are to be equal to or less than 0.5 footcandles (see section 78-707). All private residential recreation facilities and their attendant structures shall comply with the bulk requirements for accessory structures. (See article IV.) Common examples of these accessory uses include tree houses, basketball courts, tennis courts, and swimming pools.
1.
Regulations:
a.
Swimming pools shall be regulated by the performance standards provided in section 78-723.
b.
Treehouses and similar platforms shall not exceed a platform height of eight feet and shall be setback twice their elevation from any property line.
(p)
Private residential kennel.
Description: A maximum of any combination of three dogs and/or cats (over six months of age) are permitted by right for any one residential unit. Any residence housing more dogs and/or cats in any combination shall be considered a private residential kennel. In addition to those requirements, a private residential kennel shall meet the following requirements:
1.
Regulations: [None at this time.]
(q)
Private residential stable.
Description: A private residential stable is a structure facilitating the keeping of horses (or similar animals) on the same site as a residential dwelling.
1.
Regulations:
a.
A minimum lot area of 175,000 square feet (four acres) is required for a private residential stable.
b.
A maximum of one horse per two acres of fully enclosed (by fencing and/or structures) area is permitted.
c.
Outdoor containments for animals shall be located a minimum of 25 feet from any residentially zoned property.
d.
The minimum permitted size of horse or similar animal stall shall be 100 square feet.
(r)
Drainage structure.
Description: These include all improvements including, but not limited to swales, ditches, culverts, drains, tiles, gutters, levees, basins, detention or retention facilities, impoundments, and dams intended to effect the direction, rate and/or volume of stormwater runoff, snow melt, and/or channelized flows across, within and/or away from a site.
1.
Regulations:
a.
Shall be consistent with subsection 78-206(11) for the placement of drainage structures in permanently protected green space areas.
b.
All drainage improvements shall comply with the City of Stoughton's Stormwater Regulations.
(s)
Filling.
Description: Filling includes any activity in an area over 4,000 square feet, or greater than 500 cubic yards of fill, involving the modification of the earth's surface above that in its undisturbed state.
1.
Regulations:
a.
Shall comply with subsection 78-206(11)(i) regarding filling activities in permanently protected green space areas.
b.
Shall comply with article V regarding protection measures for natural resources.
c.
Shall not create drainage onto other properties.
d.
Shall not impede on-site drainage.
e.
Shall comply with provisions of the Land Division Ordinance.
(t)
Lawn care.
Description: Lawn care includes any activity involving the preparation of the ground, installation and maintenance of vegetative ground cover (including gardens) which complies with the City of Stoughton Code of Ordinances. Lawn care is not permitted in certain permanently protected green space areas, see subsection 78-706(11).
(u)
Individual septic disposal system.
Description: This land use includes any state-enabled, county-approved septic disposal system.
1.
Regulations:
a.
Minimum lot size of 0.5 acres.
b.
Shall comply with article V regarding protection measures for natural resources.
(v)
Exterior communication devices.
Description: This land use includes any structures used for communication reception.
1.
Regulations:
a.
No exterior communication device shall be erected or installed within the front yard or side yard. The rear setback and the side setback in rear yards shall be that for the principal structure within the respective zoning district. The exact location of the device shall be subject to approval by the zoning administrator. Exterior communication devices shall not be erected within front yards.
b.
No exterior communication device shall exceed a height of 20 feet above the roofline of the building on the property upon which the antenna is located or 60 feet above the ground measured at grade level, whichever is less.
c.
Exterior communication devices shall be erected and installed in accordance with the state electrical code adopted by reference in section 10-31 et seq., National Electrical Safety Code, Federal Communications Commission and the instructions of the manufacturer. In cases of conflict, the stricter requirements shall govern.
(w)
Caretaker's residence.
Description: This land use includes any residential unit which provides permanent housing for a caretaker of the subject property in either an attached or detached configuration.
1.
Regulations:
a.
Shall provide housing only for on-site caretaker and family.
(x)
In-family suite.
Description: The in-family suite is an area within a dwelling unit that may contain separate kitchen, dining, bathroom, laundry, living, sleeping, and recreation areas, including exterior porches, patios, and decks. In addition to the required internal physical connection, separate outdoor access or separate access to the garage may be provided. However, external stairs serving as the primary access to the in-family suite are prohibited.
1.
Regulations:
a.
The dwelling unit and the in-family suite shall together appear as a single-family dwelling. A separate walled garage area or driveway is not permitted
b.
A separate address for the in-family suite is not permitted.
c.
A separate utility connection or meters are not permitted.
d.
A physical all-weather connection between the main living area and the in-family suite must be present. This required connection may not occur through an attic, basement, garage, porch, or other non-living area. A door may be used to separate the in-family suite from the rest of the dwelling unit, but may not be locking, except that a locking door may be used for the bedroom and bathroom doors of the in-family suite.
e.
The in-family suites may not be occupied by a non-family member.
f.
In-family suites should be considered and regulated as part of a single-family dwelling unit.
g.
When an application is submitted for a building permit to accommodate what is explicitly listed as, or could possibly serve as, an in-family suite, the building plan shall be marked as "Not a separate dwelling unit nor apartment," and a signed letter from the applicant stating agreement with this condition shall be filed.
(y)
Keeping of chickens.
Description: A maximum of six hen chickens (no roosters) are allowed by right on residentially zoned property with a single-family, duplex or twin home residential unit. Additionally, the keeping of chickens shall be allowed for group daycares, schools and church uses within the planned business and institutional zoning districts. The following requirements shall also apply to the keeping of chickens:
1.
Regulations:
a.
No chicken coop or run area shall be closer than 25 feet to any residential home on an adjacent lot and the coop and run area shall only be located within the rear yard and/or side yard.
b.
Chicken coops that are less than 65 square feet in area are exempt from a zoning permit and fee.
c.
Chicken coops must conform to the accessory structure requirements of the specific zoning district where located.
d.
Any electrical work requires an electrical permit through the department of planning and development.
e.
Chickens shall be kept within the coop or run area at all times. The run area shall include an area fenced with materials to sufficiently contain chickens. A zoning permit and fee are required for fencing an area over 100 square feet. Fencing shall meet all zoning requirements.
f.
Selling of eggs is prohibited.
g.
Slaughtering of chickens is prohibited.
h.
The noise standards in section 6-5 of this Code must be adhered to.
i.
The public nuisances—noxious odors standards specified in section 58-8 of this Code must be adhered to.
j.
Proof of livestock premises registration with the Wisconsin Department of Agriculture, if necessary, must be provided upon request.
k.
Chickens shall be provided a covered enclosure for protection.
l.
Coops shall be a minimum of three square feet in area per hen chicken and run areas shall be a minimum of ten square feet in area per hen chicken.
(z)
Keeping of honey bees.
Description: The purpose of this section is to permit and to establish certain requirements for sound honey bee keeping practices, which are intended to avoid problems that may otherwise be associated with the keeping of bees in populated areas.
1.
Regulations:
a.
Definitions. As used in this section, the following words and terms shall have the following meanings unless the context of their usage clearly indicates another meaning:
A.
Apiary. The assembly of one or more colonies of bees at a single location.
B.
Beekeeper. A person who owns or has charge of one or more colonies of bees.
C.
Colony. An aggregate of bees consisting principally of workers, but having, when perfect, one queen and many drones, including brood, combs, honey and the hive inhabited by the bees.
D.
Hive. A structure intended for the housing of one bee colony. A single hive, including the attached honey supers, shall not exceed 20 cubic feet in size.
E.
Honey bee. All life stages of the common domestic honey bee, Apis Mellifera species.
G.
Parcel. A distinct or defined portion of land which is considered as a unit.
b.
Location and standards.
A.
All hives shall be located at least three feet from any property line. No hive shall be located within 25 feet of any dwelling, except that of the beekeeper.
B.
The entrance to any hive located closer than ten feet to any adjoining property line shall not face the nearest property line.
C.
In each instance in which a colony is situated within 25 feet of and the entrance faces that property line, a flyway barrier is required. This flyway barrier must: be at least six feet in height; consist of a solid wall, fence, dense vegetation or combination thereof; and be positioned to transect both legs of a triangle, extending from an apex at the hive to each end point of the part of the property line to be shielded.
D.
All honey bee colonies shall be kept in hives with movable frames, which shall be kept in sound and usable condition.
E.
A source of water shall be available to all honey bees kept by a beekeeper, on the same parcel on which the colony is located. The water shall be available at all times during the year when the honey bees are active, so that the honey bees will not congregate at swimming pools, pet watering bowls, bird baths or other water sources where they may cause human, bird or domestic pet contact.
F.
No bee comb or similar materials may be left upon the grounds of the apiary. Upon removal from the hive, all such materials shall promptly be disposed of within two weeks, in a sealed container, or placed within a building or other bee-proof enclosure.
G.
Whenever a colony exhibits unusually aggressive characteristics, such as stinging or attempting to sting without due provocation, or exhibits an unusual disposition toward swarming, the beekeeper shall promptly manage the colony to prevent swarming such as re-queen the colony with another queen or by other effective means. Queens shall be selected from European stock bred for gentleness and non-swarming characteristics.
H.
It shall be unlawful to keep more than the following number of colonies on any parcel within the city, based upon the size or configuration of the parcel on which the apiary is situated:
a.
One-half acre or less—two colonies.
b.
More than one-half acre but less than one acre—four colonies.
c.
One acre or larger—six colonies.
I.
Beekeeping activities conducted on property on which the principal use is residential shall be conducted in compliance with those home occupation standards in Section 78-206(8)(j) of this Code, excepting 78-206(8)(j)(1)(b) and (1)(d).
J.
Notwithstanding compliance with the various requirements of this chapter, it shall be unlawful for any beekeeper to keep any colony or colonies in such a manner, or of such disposition, as to cause any unhealthy condition, interfere with the normal use and enjoyment of human or animal life, or interfere with the normal use and enjoyment of any other property.
(9)
Temporary land uses.
(a)
General temporary outdoor sales.
Description: The temporary display and sale of any items, on private property and outside the confines of a building, that is not otherwise regulated by the City Municipal Code. Examples of this land use include but are not limited to: seasonal garden sales, fireworks sales, vegetable and fruit sales, and Christmas tree sales.
1.
Temporary use regulations:
a.
Prior to commencing any activities under this subsection, a site plan of the subject property must be approved by the zoning administrator. The site plan must specifically show where the temporary use will be located on the parcel and otherwise conform to all requirements of subsection 78-908(3)(c), except that an applicant may request approval from the zoning administrator to omit one or more requirements from the site plan. The zoning administrator may approve the omission of specific site plan requirements upon a determination that the information is not required for the evaluation of the temporary use application.
b.
The temporary use must be approved under section 78-906.
c.
If other than the property owner, the person seeking approval of the temporary use must obtain, and submit to the zoning administrator, written authorization from the property owner.
d.
A temporary use permit issued under this subsection shall be issued for a specified number of days, but no more than 180 consecutive days.
e.
The display and sale of items shall not be permitted in the public right-of-way nor in any required bufferyard or landscaped area.
f.
The temporary use shall not cause the amount of on-site parking for the existing uses on the lot or parcel to fall below the minimum amount required for the lot or parcel.
g.
The temporary use shall not impair traffic or pedestrian flow, nor shall it obstruct vision for intersecting streets, driveways, sidewalks or other traffic areas.
h.
The temporary use shall not be operated or offered through a drive- through facility.
i.
Notwithstanding subsection 78-803(1), a temporary use permit issued under this subsection authorizes temporary signage that complies with the requirements for temporary signs in subsection 78-811(3) without separate approval or additional fee.
j.
If the temporary use is located on property adjacent to residential property, sales and display activities shall be limited to daylight hours.
k.
The temporary use shall not use amplified music or other amplified sounds.
(b)
Outdoor assembly.
Description: Includes any organized outdoor assembly of more than 100 persons, such as an outdoor wedding or tent meetings
1.
Temporary use regulations:
a.
Activities shall not obstruct pedestrian or vehicular circulation, including vehicular sight distances.
b.
Signage shall comply with the requirements for temporary signs in subsection 78-811(3).
c.
Adequate parking, drinking water, and toilet facilities shall be provided, and shall be described in the application.
d.
If subject property is located adjacent to a residential area, activities shall be limited to daylight hours.
e.
Adequate provisions for crowd control shall be made, and shall be described within the application.
f.
Shall comply with section 78-906, standards and procedures applicable to all temporary uses.
(c)
Contractor's project office,
Description: Includes any structure containing an on-site construction management office for an active construction project.
1.
Temporary use regulations:
a.
Structure shall not exceed 2,000 square feet in gross floor area.
b.
Facility shall be removed within ten days of issuance of occupancy permit.
c.
Shall not be used for sales activity. (See subsection (9)(f), below.)
d.
Projects requiring land use to be in place for more than 365 days shall require a conditional use permit.
e.
Shall comply with section 78-906, standards and procedures applicable to all temporary uses.
(d)
Contractor's on-site equipment storage facility.
Description: Includes any structure or outdoor storage area designed for the on-site storage of construction equipment and/or materials for an active construction project.
1.
Temporary use regulations:
a.
Facility shall be removed within ten days of issuance of occupancy permit.
b.
Projects requiring land use to be in place for more than 365 days shall require a conditional use permit.
c.
Shall be limited to a maximum area not exceeding ten percent of the property's gross site area.
d.
Shall comply with section 78-906, standards and procedures applicable to all temporary uses.
(e)
Relocatable building.
Description: Includes any manufactured building which serves as a temporary building for less than six months. (Facilities serving for more than six months shall be considered conditional uses and subject to the general standards and procedures presented in section 78-905.)
1.
Temporary use regulations:
a.
Shall conform to all setback regulations.
b.
Shall conform to all building code regulations.
c.
Shall comply with section 78-906, standards and procedures applicable to all temporary uses.
(f)
On-site real estate sales office.
Description: Includes any building which serves as an on-site sales office for a development project.
1.
Temporary use regulations:
a.
Structure shall not exceed 5,000 square feet in gross floor area.
b.
Facility shall be removed or converted to a permitted land use within ten days of the completion of sales activity.
c.
Signage shall comply with the requirements for temporary signs in subsection 78-811(3).
d.
Projects requiring land use to be in place for more than 365 days shall require a conditional use permit.
e.
Shall comply with section 78-906, standards and procedures applicable to all temporary uses.
(g)
Reserved.
(h)
Temporary portable storage container.
Description: A portable storage container designed and used primarily for temporary storage of household goods and other such materials for use on a limited basis on residential property.
1.
Temporary use regulations:
a.
Container shall not exceed outside dimensions of 16 feet in length, eight feet in width, and nine feet in height.
b.
The container shall be permitted on the property for up to 14 days associated with each change of occupancy as defined by a recorded change in property ownership or valid lease.
c.
The temporary portable storage container cannot encroach on the public right-of-way, neighboring property, sidewalk, or be placed in the street. The unit must be sited on asphalt, concrete, gravel, or hard paved surface.
d.
For all multi-family uses, including multiplex (subsection 78-206(1)(a)(6)), apartments (subsection 78-206(1)(a)(7)), and townhouses (subsection 78-206(1)(a)(5)), use of temporary portable storage containers shall require review and approval by the director of planning and development. The applicant shall provide written permission from the land owner to place the temporary portable storage container on the property in accordance with the regulations listed in this section.
e.
Shall comply with section 78-906, standards and procedures applicable to all temporary uses.
(i)
Temporary shelter.
Description: These shelters are typically supported by poles, have a fabric roof and/or sides and are usually used to cover automobiles, boats, recreational vehicles, or fire wood on a temporary or permanent basis. These structures are not designed for the snow loading that can occur during the winter months. These shelters are not permitted in any zoning district in the City of Stoughton.
(j)
Mobile food vending.
Description: Mobile food vending is the retail sale of food or beverages to the general public from a mobile food vending vehicle. A mobile food vending vehicle may operate in any zoning district except in the Central Business District and residential districts.
1.
Regulations:
a.
Prior to commencing any activities under this subsection, a site plan of the subject property must be approved by the zoning administrator. The site plan must specifically show where the mobile food vending vehicle will be located on the parcel and otherwise conform to all requirements of subsection 78-908(3)(c), except that an applicant may request approval from the zoning administrator to omit one or more requirements from the site plan. The zoning administrator may approve the omission of specific site plan requirements upon a determination that the information is not required for the evaluation of the temporary use application.
b.
The temporary use must be approved under section 78-906.
c.
If other than the property owner, the person seeking approval of the temporary use must obtain, and submit to the zoning administrator, written authorization from the property owner.
d.
Mobile food vending shall not be permitted in the public right-of- way nor in any required bufferyard or landscaped area.
e.
A temporary use permit issued under this subsection shall be issued for a specified number of days, but no more than 180 consecutive days.
f.
The temporary use shall not cause the amount of on-site parking for the existing uses on the lot or parcel to fall below the minimum amount required for the lot or parcel.
g.
Mobile food vending shall not impair traffic or pedestrian flow, nor shall it obstruct vision for intersecting streets, driveways, sidewalks or other traffic areas.
h.
Mobile food vending shall not be operated or offered through a drive-through facility.
i.
Notwithstanding subsection 78-803(1), a temporary use permit issued under this subsection authorizes temporary signage that complies with the requirements for temporary signs in subsection 78-811(3) without separate approval or additional fee.
j.
Except as provided in subdivision k., mobile food vending may occur only between the hours of 6:00 a.m. and 9:00 p.m.
k.
If mobile food vending is conducted on property adjacent to residential property, sales and display activities shall be limited to daylight hours.
l.
Mobile food vending shall not use amplified music or other amplified sounds.
m.
A mobile food vendor must comply with all food preparation and sanitation regulations of the Wisconsin Food Code and Public Health Madison & Dane County, and each mobile food vending vehicle must be licensed to sell food and beverages by Public Health Madison & Dane County or by the State of Wisconsin.
n.
No mobile food vending vehicle shall be permitted within 500 feet of the location of a city-licensed special event during the hours approved for such event, unless the mobile food vending unit is part of the aforementioned event.
o.
Connection of a mobile food vending vehicle to a public source of electricity, water, or sewer is prohibited.
(k)
Mobile food vending at special events.
Description: This land use allows the operation of a mobile food vending vehicle in conjunction with a special event licensed under chapter 14, article XVIII and with the authorization of the special event licensee.
1.
Temporary use regulations.
a.
The mobile food vending vehicle must be located on the premises described as the special event location in the special event license application under subsection 14-473(b) and shall operate in strict conformance with any conditions imposed under the special event license and only during the hours approved for the event.
b.
Mobile food vending shall not be operated or offered through a drive-through facility.
c.
A mobile food vending vendor must comply with all food preparation and sanitation regulations of the Wisconsin Food Code and Public Health Madison & Dane County, and each mobile food vending vehicle must be licensed to sell food and beverages by Public Health Madison & Dane County or by the State of Wisconsin.
(10)
Energy production land uses.
(a)
Small wind energy system.
Description: A wind energy conversion system consisting of a wind turbine, a tower and associated control or conversion electronics which will be used primarily to reduce on-site consumption of utility power. A small wind energy system shall not exceed a rated capacity of 60 kW.
1.
Regulations:
a.
Permitted locations. A small wind energy system is permitted as a conditional use in any zoning district.
b.
Total height. For property sizes up to two acres, the total height shall not exceed 60 feet. For property sizes between two and five acres, the total height shall not exceed 100 feet. For property sizes greater than five acres, the total height shall not exceed 150 feet.
c.
Location. No small wind energy system shall be located in any front or side yard.
d.
Setbacks.
A.
Property lines. A small wind energy system shall be set back from the nearest property line, public road right-of-way and communication and electrical line not less than 1.1 times its total height.
B.
Inhabited structure. A small wind energy system shall be set back from the nearest inhabited building not less than 1.5 times its total height.
e.
Design standards.
A.
Monopole or freestanding design. The design of the small wind energy system shall be of a monopole or freestanding design without guy wires.
B.
Minimum blade height. The minimum height of the lowest extent of a turbine blade shall be 30 feet above the ground or 30 feet above any structure or obstacle within 100 feet from the tower.
C.
Access. No tower shall have a climbing apparatus within 12 feet of the ground. All access doors or access ways to towers and electrical equipment shall be lockable.
D.
Noise. No small wind energy system shall exceed 80 dBA as measured at the property line or 50 dBA as measured at the nearest neighboring inhabitable building.
E.
Visual appearance. Small wind energy systems shall be finished in a rust-resistant, non-obtrusive finish and color that is non-reflective. No small wind energy system shall be lighted unless required by the FAA. No advertising signs of any kind or nature whatsoever shall be permitted on any small wind energy system.
F.
Electrical interconnections. All electrical connections shall be underground and comply with all applicable codes; public utility requirements; Chapter PSC 119 "Rules for Interconnecting Distributed Generation Facilities;" PSC Forms 6027 and 6028 "Standard Distributed Generation Application Form;" and PSC Forms 6029 and 6030, "Distributed Generation Interconnection Agreement."
G.
Shadowing/flicker. Wind energy systems shall be sited in a manner that does not result in significant shadowing or flicker impacts. The applicant has the burden of proving that this effect does not have significant impact on neighboring or adjacent uses either through siting or mitigation.
H.
Signs. All signs, both temporary and permanent, are prohibited on the wind energy system, except that the manufacturer's identification and appropriate warning signs are allowed.
I.
Clearing. Clearing of natural vegetation shall be limited to that which is necessary for the construction, operation and maintenance of the wind energy system and as otherwise prescribed by applicable laws, regulations, and ordinances. Trimming of natural vegetation which blocks wind is not required by the owner or occupant of the property for which the vegetation is located if the vegetation was planted prior to the wind energy system installation. The responsibility lies with the owner of the wind energy system to negotiate the trimming of existing natural vegetation. The responsibility lies with the owner of the property where natural vegetation is planted after the installation of the wind energy system to trim the natural vegetation so as not to cause wind blockage.
J.
Signal interference. Efforts shall be made to site small wind energy systems to reduce the likelihood of blocking or reflecting television and other communication signals. If signal interference occurs, both the small wind energy system owner and individual receiving interference shall make reasonable efforts to resolve the problem. No small wind energy system shall cause permanent and material interference with television or other communication signals.
K.
Overspeed controls. Every small wind energy system shall be equipped with both manual and automatic overspeed controls.
f.
Conditional use permit application requirements. Conditional use applications for a small wind energy system shall include the following information:
A.
Site plan to scale showing the location of the proposed wind energy system and the locations of all existing buildings, structures, public right-of-ways and property lines along with distances.
B.
Elevations of the site to scale showing the height, design and configuration of the wind energy system and the height and distance to all existing structures, buildings and electrical lines in relation to property lines.
C.
Standard drawings and an engineering analysis of the systems tower including weight capacity.
D.
A standard foundation design along with soil conditions and specifications for the soil conditions at the site.
E.
Specific information on the type, size, rotor material, rated power output, performance, safety and noise characteristics of the system including the name and address of the manufacturer, model and serial number.
F.
Emergency and normal shutdown procedures.
G.
A line drawing of the electrical components of the system in sufficient detail to establish that the installation conforms to all applicable electrical codes.
H.
Evidence that the provider of electrical service of the property has been notified of the intent to install an interconnected electricity generator unless the system will not be connected to the electricity grid.
I.
A building permit shall be required and if necessary an electrical permit for the installation or modification of a wind energy system. Such system shall be installed and functioning within a period of 24 months from date of building permit issuance otherwise the conditional use process shall start over.
J.
Sound level analysis prepared by the wind turbine manufacturer or qualified engineer.
K.
Estimated cost to physically remove the wind energy system to comply with surety standards.
L.
Evidence of compliance with or non-applicability with Federal Aviation Administration requirements.
M.
Liability insurance coverage in the amount of $1,000,000 of which the City of Stoughton shall be the certificate holder.
g.
Abandonment.
A.
At such time that a wind energy system is scheduled to be abandoned or discontinued operation, the applicant will notify the department of planning and development by certified U.S. mail of the proposed date of abandonment or discontinuance of operation.
B.
The owner shall physically remove the wind energy system within 120 days of abandonment or discontinuance of operation. This period may be extended at the request of the owner and the discretion of the department of planning and development. Physically remove shall mean: Removal of the wind turbine, tower and related above grade structures and restoration of the location of the wind energy system to its natural condition, except that any landscaping, grading or below grade foundation may remain in the after conditions.
C.
In the event that an applicant fails to give such notice, the system shall be considered abandoned or discontinued if the system is out of service for a continuous period of 120 days. After the 120 days of inoperability, the department of planning and development may issue a notice of abandonment to the owner of the wind energy system. The owner shall have the right to respond to the notice of abandonment within 30 days from notice receipt date. The department of planning and development shall withdraw such notice if the owner provides information that demonstrates the wind energy system has not been abandoned.
D.
If the owner fails to respond to the notice of abandonment or if after review by the department of planning and development it is determined that the wind energy system has been abandoned or discontinued, the owner of the wind energy system shall remove the wind turbine, tower and related above grade structures at the owner's expense within 90 days of receipt of the notice of abandonment. If the owner fails to physically remove the wind energy system after the notice of abandonment procedure, the city or their designee shall have the authority to enter the subject property and physically remove the wind energy system.
E.
The planning commission shall have the authority to require the applicant to provide a form of surety (i.e., post a bond, letter of credit or establish an escrow account or by other means) at the time of construction to cover costs associated with the removal in the event the city must remove the wind energy system. The applicant shall submit a fully inclusive estimate of the costs associated with the removal, prepared by a qualified engineer. The amount shall include a mechanism to accommodate the rate of inflation over 15 years.
h.
Violation. It is unlawful for any person to construct, install, or operate a wind energy system that is not in compliance with this ordinance or with any condition contained in the conditional use site plan review issued pursuant to this ordinance.
i.
Penalties. Any person who fails to comply with any provisions of this ordinance, conditional use permit or building permit issued pursuant to this ordinance shall be subject to enforcement and penalties as allowed by this ordinance and chapter 1, section 1-3 of City Ordinance.
j.
Waiver provisions. During the conditional use process, the city council may waive any portion of this ordinance in such cases where, in the opinion of the planning commission, strict conformity would pose an unnecessary hardship to the applicant and a waiver would not be contrary to the spirit and intent of this ordinance.
(b)
Commercial wind energy system.
Description: A wind energy conversion system consisting of more than one wind turbine and tower, a wind energy conversion system which will be used primarily for off-site consumption of power or a wind energy system in excess of 60 kWh.
1.
Regulations:
a.
Permitted locations. A commercial wind energy system may be permitted as a conditional use in the industrial districts.
b.
Minimum parcel size. No commercial wind energy system shall be erected on any parcel less than ten acres in size.
c.
Total height. The total height of a commercial wind energy system shall not exceed 175 feet.
d.
Setbacks.
A.
Property lines. A commercial wind energy system shall be set back from the nearest property line and public road right-of-way not less than 1.1 times the its total height.
B.
Other uses. No commercial wind energy system shall be located within 1,000 feet of a property line of the following: platted subdivision, park, church, school or playground.
e.
Design standards.
A.
Monopole or freestanding design. The design of the small wind energy system shall be of a monopole or freestanding design without guy wires.
B.
Minimum blade height. The minimum height of the lowest extent of a turbine blade shall be 30 feet above the ground or 30 feet above any structure or obstacle within 100 feet from the tower.
C.
Access. No tower shall have a climbing apparatus within 12 feet of the ground. All access doors or access ways to towers and electrical equipment shall be lockable.
D.
Noise. No small wind energy system shall exceed 80 dBA as measured at the property line or 50 dBA as measured at the nearest neighboring inhabitable building.
E.
Visual appearance. Small wind energy systems shall be finished in a rust-resistant, non-obtrusive finish and color that is non-reflective. No small wind energy system shall be lighted unless required by the FAA. No advertising signs of any kind or nature whatsoever shall be permitted on any small wind energy system.
F.
Electrical interconnections. All electrical connections shall be underground and comply with all applicable codes; public utility requirements; Chapter PSC 119 "Rules for Interconnecting Distributed Generation Facilities;" PSC Forms 6027 and 6028 "Standard Distributed Generation Application Form;" and PSC Forms 6029 and 6030, "Distributed Generation Interconnection Agreement."
G.
Shadowing/flicker. Wind energy systems shall be sited in a manner that does not result in significant shadowing or flicker impacts. The applicant has the burden of proving that this effect does not have significant impact on neighboring or adjacent uses either through siting or mitigation.
H.
Signs. All signs, both temporary and permanent, are prohibited on the wind energy system, except that the manufacturer's identification and appropriate warning signs are allowed.
I.
Clearing. Clearing of natural vegetation shall be limited to that which is necessary for the construction, operation and maintenance of the wind energy system and as otherwise prescribed by applicable laws, regulations, and ordinances. Trimming of natural vegetation which blocks wind is not required by the owner or occupant of the property for which the vegetation is located if the vegetation was planted prior to the wind energy system installation. The responsibility lies with the owner of the wind energy system to negotiate the trimming of existing natural vegetation. The responsibility lies with the owner of the property where natural vegetation is planted after the installation of the wind energy system to trim the natural vegetation so as not to cause wind blockage.
f.
Conditional use permit application requirements. Conditional use applications for a small wind energy system shall include the following information:
A.
Site plan to scale showing the location of the proposed wind energy system and the locations of all existing buildings, structures, public right-of-ways and property lines along with distances.
B.
Elevations of the site to scale showing the height, design and configuration of the wind energy system and the height and distance to all existing structures, buildings and electrical lines in relation to property lines.
C.
Standard drawings and an engineering analysis of the systems tower including weight capacity.
D.
A standard foundation design along with soil conditions and specifications for the soil conditions at the site.
E.
Specific information on the type, size, rotor material, rated power output, performance, safety and noise characteristics of the system including the name and address of the manufacturer, model and serial number.
F.
Emergency and normal shutdown procedures.
G.
A line drawing of the electrical components of the system in sufficient detail to establish that the installation conforms to all applicable electrical codes.
H.
Evidence that the provider of electrical service of the property has been notified of the intent to install an interconnected electricity generator unless the system will not be connected to the electricity grid.
I.
A building permit shall be required and if necessary an electrical permit for the installation or modification of a wind energy system. Such system shall be installed and functioning within a period of 24 months from date of building permit issuance otherwise the conditional use process shall start over.
J.
Sound level analysis prepared by the wind turbine manufacturer or qualified engineer.
K.
Estimated cost to physically remove the wind energy system to comply with surety standards.
L.
Evidence of compliance with or non-applicability with Federal Aviation Administration requirements.
M.
Liability insurance coverage in the amount of $1,000,000.00 of which the City of Stoughton shall be the certificate holder.
g.
Abandonment.
A.
At such time that a wind energy system is scheduled to be abandoned or discontinued operation, the applicant will notify the department of planning and development by certified U.S. mail of the proposed date of abandonment or discontinuance of operation.
B.
The owner shall physically remove the wind energy system within 120 days of abandonment or discontinuance of operation. This period may be extended at the request of the owner and the discretion of the department of planning and development. Physically remove shall mean: Removal of the wind turbine, tower and related above grade structures and restoration of the location of the wind energy system to its natural condition, except that any landscaping, grading or below grade foundation may remain in the after conditions.
C.
In the event that an applicant fails to give such notice, the system shall be considered abandoned or discontinued if the system is out of service for a continuous period of 120 days. After the 120 days of inoperability, the department of planning and development may issue a notice of abandonment to the owner of the wind energy system. The owner shall have the right to respond to the notice of abandonment within 30 days from notice receipt date. The department of planning and development shall withdraw such notice if the owner provides information that demonstrates the wind energy system has not been abandoned.
D.
If the owner fails to respond to the notice of abandonment or if after review by the department of planning and development it is determined that the wind energy system has been abandoned or discontinued, the owner of the wind energy system shall remove the wind turbine, tower and related above grade structures at the owner's expense within 90 days of receipt of the notice of abandonment. If the owner fails to physically remove the wind energy system after the notice of abandonment procedure, the city or their designee shall have the authority to enter the subject property and physically remove the wind energy system.
E.
The planning commission shall have the authority to require the applicant to provide a form of surety (i.e., post a bond, letter of credit or establish an escrow account or by other means) at the time of construction to cover costs associated with the removal in the event the city must remove the wind energy system. The applicant shall submit a fully inclusive estimate of the costs associated with the removal, prepared by a qualified engineer. The amount shall include a mechanism to accommodate the rate of inflation over 15 years.
h.
Violation. It is unlawful for any person to construct, install, or operate a wind energy system that is not in compliance with this chapter or with any condition contained in the conditional use site plan review issued pursuant to this ordinance.
i.
Penalties. Any person who fails to comply with any provisions of this ordinance, conditional use permit or building permit issued pursuant to this ordinance shall be subject to enforcement and penalties as allowed by this ordinance and chapter 1, section 1-3 of City Ordinance.
j.
Waiver provisions. During the conditional use process, the city council may waive any portion of this chapter in such cases where, in the opinion of the planning commission, strict conformity would pose an unnecessary hardship to the applicant and a waiver would not be contrary to the spirit and intent of this ordinance.
(c)
Solar energy system.
Description: An energy system which converts solar energy to usable thermal, mechanical, chemical, or electrical energy.
1.
Regulations:
a.
Establishment. Solar energy systems (rooftop, building-mounted, and free standing) are permitted in all zoning districts as accessory structures
b.
Permitted locations. Free standing solar energy systems shall comply with the requirements for accessory structures. Rooftop and building-mounted solar energy systems shall comply with the height limits and setbacks for primary structures.
c.
See article I for specific bulk, density, and intensity requirements for accessory structures in each district.
d.
The requirements of Wisconsin Statutes, including but not limited to 66.0401 and 66.0403, shall apply to all solar energy systems.
(11)
Natural resource disruption and required mitigation standards: In all developments, certain areas may be required to be set aside as permanently protected green space for the purpose of natural resource protection, to meet a minimum green space ratio (GSR) requirement, or to meet a minimum landscape surface ratio (LSR) requirement. Where such permanently protected green space is required, and where the land use is also permitted per the land use regulations of the applicable conventional zoning district (see section 78-206, Detailed land use descriptions and regulations), the following regulations shall also be employed to establish land use regulations. All land uses listed in section 78-206 but not listed in this section are prohibited in permanently protected green spaces.
For all land uses, disruption to natural resource areas shall comply with the requirements of the Land Division Ordinance pertaining to drainage, grading and erosion control. All land uses located within permanently protected green space areas shall comply with the following:
(a)
Cultivation.
1.
Permitted as a conditional use:
{Permanently protected green space areas outside Natural Resource Protection Overlay Zoning District}:
a.
Permitted only if designated on the submitted site plan, and/or the recorded plat or certified survey as an "Area which may be used for cultivation".
(b)
Passive outdoor public recreational area.
1.
Permitted by right:
{All permanently protected green space areas}:
a.
Limited to a 20-foot wide area in permanently protected natural resource areas. Permitted in other permanently protected green space areas without restriction.
b.
Non-native vegetation shall not be permitted to spread into permanently protected natural resource areas beyond said 20-foot wide area.
(c)
Active outdoor public recreational area.
1.
Permitted by right:
{Permanently protected green space areas outside Natural Resource Protection Overlay Zoning District}:
a.
Non-native vegetation shall not be permitted to spread into permanently protected natural resource areas.
2.
Permitted as a conditional use:
{Floodfringe (the flood plain outside of designated floodways)}
(d)
Outdoor institutional.
1.
Permitted by right:
{Permanently protected green space areas outside Natural Resource Protection Overlay Zoning District}:
a.
Non-native vegetation shall not be permitted to spread into permanently protected natural resource areas.
(e)
Lawn care.
1.
Permitted by right:
{Permanently protected green space areas outside Natural Resource Protection Overlay Zoning District}:
a.
Non-native ground cover shall not be permitted to spread into permanently protected natural resource areas. Clearance of understory growth shall be permitted.
2.
Permitted as a conditional use.
{All permanently protected natural resource areas except wetlands}:
a.
Only disturbance associated with the care of native vegetation is permitted, with the exception of a 20-foot wide access path which may be cleared for passive recreation purposes.
b.
Each property abutting a natural resource area shall be limited to one such access path.
c.
Non-native vegetation (such as domestic lawn grasses) shall not be introduced into natural resource areas beyond said 20-foot wide access path.
(f)
Golf course.
1.
Permitted by right:
{Permanently protected green space areas outside Natural Resource Protection Overlay Zoning District}:
a.
Non-native vegetation shall not be permitted to spread into permanently protected natural resource areas.
2.
Permitted as a conditional use.
{All permanently protected natural resource areas}:
a.
Only disturbance associated with the care of native vegetation is permitted. Natural resource areas which are located within or adjacent to golf play areas shall be incorporated into the course design as out-of-bounds play hazards, and shall be maintained in their natural state.
(g)
Any permitted temporary use.
1.
Permitted by right:
{Permanently protected green space areas outside Natural Resource Protection Overlay Zoning District}
a.
Activity shall in no manner encroach upon permanently protected natural resources areas. Party securing the temporary use permit shall be responsible for restoring all such natural resource areas to an undamaged state, or shall be considered in violation of the provisions of this chapter. (Section 78-906.)
(h)
Drainage structure.
1.
Permitted as a conditional use.
{All permanently protected green space areas}:
a.
Structure shall be deemed necessary by the city engineer.
b.
Natural vegetation shall be restored in disturbed areas.
(i)
Filling.
1.
Permitted as a conditional use.
{All permanently protected green space areas}:
a.
Filling in the floodway shall be done only as required by a necessary road, bridge, utility, or other infrastructure facility which has been deemed necessary by the department of planning and development.
b.
Natural vegetation shall be restored in disturbed areas.
c.
In no instance shall filling raise the base flood elevation.
(j)
Individual septic disposal system.
1.
Permitted as a conditional use.
{Permanently protected green space areas outside Natural Resource Protection Overlay Zoning District}:
a.
Shall not locate closer than 30 feet to any other permanently protected natural resource area.
(k)
Road and/or bridge.
1.
Permitted as a conditional use.
{All permanently protected green space areas}:
a.
May locate in or across a natural resource areas only in conjunction with a boat landing, or when deemed essential by the department of planning and development.
b.
May locate in other permanently protected green space areas if designed to provide an essential service to an activity area located within the green space area which cannot be efficiently reached from another point.
c.
Road networks shall be designed to circumvent permanently protected green space areas, thereby eliminating the need for intrusions and crossings.
(l)
Utility lines and related facilities.
1.
Permitted as a conditional use.
{All permanently protected green space areas}:
a.
May locate in or across a natural resource areas only when deemed essential by the department of planning and development.
b.
May locate in other permanently protected green space areas if designed to provide an essential service to an activity area located within the green space area which cannot be efficiently reached from another point.
c.
In general, utility lines shall be designed to circumvent permanently protected green space areas, thereby eliminating the need for intrusions and crossings.
(m)
Piers and wharfs.
1.
Permitted as a conditional use.
{All permanently protected green space areas}:
a.
A site plan shall be required per section 78-908 for construction, erection, placement or extension of a pier or wharf, with specific information provided regarding: its location in relation to the shoreline and abutting riparian property lines, and regarding dimensions and building materials.
(Ord. No. 0-6-09, 6-23-2009; Memo. of 3-22-2010; Ord. No. 0-6-10, § 1, 8-10-2010; Ord. No. 0-9-10, § 1, 8-10-2010; Ord. No. 0-21-10, § 1, 12-14-2010; Ord. No. 0-22-10, § 1, 12-14-2010; Ord. No. 0-4-2011, §§ 111, 112, 118, 121—123, 152, 155, 156, 5-20-2011; Ord. No. 0-1-2012, §§ 6, 7, 1-24-2012; Ord. No. 0-3-2012, § 1, 4-10-2012; Ord. No. 0-12-2012, § 1, 7-10-2012; Ord. No. 0-20-2012, § 1, 12-11-2012; Ord. No. 0-27-2013, § 1, 11-12-2013; Ord. No. 0-29-2013, § 1, 12-10-2013; Ord. No. 0-13-2014, §§ 6, 7, 7-8-2014; Ord. No. 0-19-2014, § l, 8-26-2014; Ord. No. 0-3-2015, § 1, 7-14-2015; Ord. No. 0-2-2015, § 1, 6-9-2015; Ord. No. 0-02-2016, § 1, 2-9-2016; Ord. No. 0-04-2016, , §§ 1, 2, 2-23-2016; Ord. No. 0-26-2016, § 1, 12-27-2016; Ord. No. 0-2-2019, § 1, 2-12-2019; Ord. No. 0-12-2019, § 3(Exh. B), 4-23-2019; Ord. No. 0-13-2019, § 3, 4-23-2019; Ord. No. 0-18-2020, § 1, 9-22-2020; Ord. No. 0-26-2020, 12-8-2020; Ord. No. 0-13-2021, §§ 20—23, 6-8-2021; Ord. No. 0-27-2022, § 24, 11-15-2022; Ord. No. 0-21-2024, § 1(Exh. A), 11-26-2024)
(1)
Definitions. The following words and phrases, whenever used in this chapter, shall have the meanings defined in this section unless the context requires otherwise:
Tobacco product: Any manufactured product containing tobacco or nicotine, including, but not limited to, cigarettes, cigars, pipe tobacco, snuff, chewing tobacco, dipping tobacco, bidis, snus, dissolvable tobacco products, e-cigarette products such as propylene glycol, glycerin, nicotine, flavorings, personal vaporizers, electronic nicotine delivery systems, or any device used to ingest tobacco. However, "tobacco product" does not include any product that has been approved by the U.S. Food and Drug Administration, pursuant to its authority over drugs and devices for sale as a tobacco use cessation product or for other medical purposes and sold solely for that approved purpose.
Tobacco product businesses: As defined as an establishment in which ten percent or more of the gross public floor area is devoted to, or ten percent or more of the stock in trade of tobacco products. For purposes of calculating the total public floor area, outdoor green spaces, parking areas, paved areas, or areas not used for commercial sales shall be excluded.
(2)
Tobacco product businesses. The following requirements apply to any tobacco product business:
(a)
The business may only be located within the Planned Business (PB) District or Central Business (CB) District zoning district.
(b)
Regulation on distance of tobacco product business. Distance is to be measured from property line to property line, shortest distance between the two properties.
1.
Tobacco product business cannot be located within 300 feet of any property zoned as a residential district, as measured from the lot lines.
2.
Tobacco product business cannot be located within 1,000 feet of any school, library, childcare center, park, or playground, as measured from the lot lines.
3.
Tobacco product business cannot be located within 1,000 feet of another tobacco product business, as measured from the lot lines.
(c)
Sign limitations. Notwithstanding any other provision of this Code, a tobacco product business shall only be permitted one sign, which shall be an on-premises or building sign only. All such signs shall meet the following criteria:
1.
No sign shall be placed in any window.
2.
No sign shall contain any flashing lights, moving elements, or mechanically changing messages.
(d)
The business owner must have a valid tobacco product business license as required by sections 14-491—[14-]498.
(Ord. No. 0-22-2025, § 1, 6-27-2025)
(1)
General Provisions: As set forth in Wis. Stat. § 62.23(7)(h), the continued lawful use of a building, premises, structure, or fixture existing at the time of the adoption or amendment of a zoning ordinance may not be prohibited although the use does not conform with the provisions of the ordinance. As required by law, the city's interpretation and application of the nonconforming use regulations set forth in this section shall be governed by state statutes relating to nonconforming uses, and any subsequent amendments thereto. Applicable provisions of Wis. Stat. § 62.23(7) relating to nonconforming uses, and subsequent amendments thereto, are hereby incorporated in this section by reference. In the event of a conflict of law in this chapter, Wis. Stat. § 62.23(7)(g) shall apply.
(2)
Continuance of a Nonconforming Use: Any nonconforming use may continue as allowed by law.
(3)
Modification of a Nonconforming Use: As prescribed by Wis. Stat. § 62.23(7)(h), a nonconforming use shall not be expanded.
(4)
Discontinuance of a Nonconforming Use: If the nonconforming use is discontinued for a period of 12 consecutive months, any future use of the building, premises, structure or fixture shall conform to this chapter.
(5)
Structural Alterations and Repairs of a Structure Containing a Nonconforming Use: This Subsection is not intended to regulate ordinary maintenance and repair; however, the city and owners of structures containing nonconforming uses are subject to Wisconsin Statutes that limit structural repairs and alterations to structures containing nonconforming uses. To meet applicable statutory requirements, 1 the city recommends that all owners of structures containing nonconforming uses maintain records of structural repairs and alterations. The burden is on the person requesting a permit for structural repairs and alterations to establish eligibility under the law in effect at the time that the permit is requested.
See also Regulations for Nonconforming Structures set forth in this Chapter.
(Ord. No. 0-6-09, 6-23-2009; Memo. of 3-22-2010; Ord. No. 0-16-2012, § 1, 9-11-2012; Ord. No. 0-2-14, § 1, 5-13-2014; Ord. No. 0-22-2014, § 1, 9-9-2014)