LANDSCAPING AND BUFFERYARD REGULATIONS
The purpose of this article is to indicate the minimum requirements for the landscaping of foundations, developed lots, street frontages, paved areas, permanently protected green space areas, reforestation areas, and bufferyards.
(Ord. No. 0-6-09, 6-23-2009)
(1)
This article contains the standards which govern the amount, size, type, installation and maintenance of required landscaping. This article recognizes the important and diverse benefits which landscaping provides in terms of protecting the health, safety, and general welfare of the community, and implementing the comprehensive plan.
(2)
Each section of this article is oriented to a specific category of required landscaping. The landscaping requirements described in this article of the chapter are cumulative in nature and are required for all development, except single-family residential and agricultural uses, in the following locations: around building foundations, in developed lots, along street frontages, in or around paved areas, in permanently protected green space areas, in reforestation areas, and in bufferyards. Descriptions of these areas and their associated landscape requirements are included in Landscaping requirements for regular development (building foundation, developed lots, street frontages, paved areas) (section 78-604); Landscaping requirements for permanently protected green space areas (section 78-608); Landscaping requirements for reforestation (section 78-609); and Landscaping requirements for bufferyards (section 78-610).
(3)
In each instance, a "landscaping point" concept is used to provide a maximum amount of flexibility in terms of the selection of plant materials. Section 78-603 presents sample landscape point combination alternatives used by this chapter. At the end of this chapter (and in more detail in the Appendix on pages A-3 through A-28), Section 78-611 provides a listing of plant species fitting into the "climax tree", "tall deciduous tree", "medium deciduous tree", "low deciduous tree", "tall evergreen tree", "medium evergreen tree", "low evergreen tree", "tall deciduous shrub", "medium deciduous shrub", "low deciduous shrub", "medium evergreen shrub", "low evergreen shrub", and "non-contributory plants" used by this chapter. Section 78-612 provides requirements for the installation and maintenance of required landscaping, and section 78-613 describes the procedure for calculating landscaping requirements for this section.
(Ord. No. 0-6-09, 6-23-2009)
(1)
All landscaping requirements are stated in terms of the number of landscaping points required. The required number of landscaping points is dependent upon the type of land use, the zoning district, and the size of the development. A different number of points is awarded for each plant, depending upon its typical growth rate, its mature height, and whether it is a deciduous or evergreen species. A minimum installation size is required for each of these plant categories. These requirements are as follows:
Table 78-603: Landscaping Points and Minimum Installation Sizes
(2)
Landscaping points, measurements and sample landscaping layouts. Depiction of sample landscaping schemes, shown on the following pages, depicts sample landscaping schemes that may be used for building foundations, developed lots, street frontages, paved areas, reforestation, and bufferyards. In general, landscaping schemes similar to Alternative A are best for building foundations, landscaping schemes similar to Alternative B are best for developed lots, landscaping schemes similar to Alternative C are best for street frontages, landscaping schemes similar to Alternative D are best for paved areas (including parking lots, walkways and plazas), landscaping schemes similar to Alternative E are best for reforestation, and landscaping schemes similar to Alternative F are best for bufferyards. A detailed listing of which plant species fit each plant type is provided in appendix B.
Alternative A
Alternative B
Alternative C
Alternative D
Alternative E
Alternative F
(3)
Measurement for landscaping requirements: A minimum amount of landscaping points, based upon the zoning district, is required for:
(a)
The linear feet building foundations.
(b)
The gross floor area of buildings on developed lots.
(c)
The linear feet of street frontage, and.
(d)
The total combined area of paved areas.
The following diagram illustrates the measurement techniques used to determine these requirements:
Landscaping Calculation Equations for this Example:
Paved area = (P1 × P2) + (P3 × P4) + (P5 × P6) + (P7 × P8) + (P9 × P10)
Street frontage = S1 + S2
Building perimeter = F1 + F2 + F3 + F4 + F5 + F6 + F7 + F8
Building floor area = (B1 × B2) + (B3 × B4) + (B5 × B6)
(Ord. No. 0-6-09, 6-23-2009; Memo. of 3-22-2010; Ord. No. 0-10-2012, § 1, 6-12-2012)
Landscaping is not required for single-family (subsection 78-206(1)), or Agricultural (subsection 78-206(2)) land uses).
(1)
Building foundations. As indicated in Table 78-604, certain buildings or building additions constructed after the effective date of this chapter are required to be accented by a minimum amount of landscaping placed near the building foundation.
(a)
Foundation landscaping shall be placed so that at maturity, the plant's drip line is located within ten feet of the building foundation. Such landscaping shall not be located in those areas required for landscaping as street frontages, paved areas, protected green space areas, reforestation areas, or bufferyards. Foundation landscaping shall be installed and permanently maintained in conformity with the requirements of section 78-612.
(b)
For each 100 feet of building foundation perimeter, the landscaping installed shall at a minimum meet the number of landscaping points specified in Table 78-604. The actual number of points required for such landscaping shall be computed on a prorated basis, and installed and permanently maintained per the requirements of section 78-612.
(c)
Climax trees and tall trees shall not be used to meet the foundation landscaping requirement. The intent of this section is to require a visual break in the mass of buildings and to require a visual screen of a minimum of six feet in height for all exterior perimeter appurtenances (such as HVAC/utility boxes, standpipes, stormwater discharge pipes and other pipes).
(d)
If the officially approved site plan depicts a future building extension, the foundation landscaping requirement shall be calculated by measuring the length of the total perimeter. However, foundation plantings need only be installed based on the landscape points calculated from the portions of the building perimeter that will not be affected by building extension. If this results in a point requirement not met by the initial planting, then the requirement shall be met within five years after the issuance of the building permit, or within such larger time period as established in writing by the plan commission.
(2)
Street frontages. As indicated in Table 78-604, street frontages on certain lots developed after the effective date of this chapter contain a minimum amount of landscaping in those areas abutting the right-of-way of a public street.
(a)
All landscaping used to meet street frontage requirements shall be located within ten feet of the public right-of-way. Under no circumstances shall such landscaping be located within a public right-of-way. Landscaping shall not impede vehicle or pedestrian visibility, and shall be installed and permanently maintained in conformity with the requirements of section 78-612.
(b)
For every 100 linear feet of street frontage of a developed lot abutting a public street right-of-way, the landscape installed shall at a minimum meet the number of landscaping points specified in Table 78.604. The actual number of points required for such landscaping shall be computed on a prorated basis, and installed and maintained per the requirements of section 78-612.
(c)
Shrubs shall not be used to meet street frontage landscaping requirements. A minimum of 50 percent of all points shall be devoted to climax or tall trees, or a combination of such trees, and a minimum of 30 percent of all points shall be devoted to medium trees.
(3)
Paved areas. As indicated in Table 78-604, paved areas on certain lots developed after the effective date of this chapter must contain a minimum amount of landscaping within, or within ten feet of, the paved area. The intent is to require a continuous visual screen of parking areas from public rights-of-way at a minimum height of 40 inches.
(a)
A minimum of 360 square feet of landscaped area, which shall be located within ten feet of the paved area, is required for the placement of every 100 paved area landscaping points. Said area does not have to be provided in one contiguous area. Sample configurations are depicted in section 78-603, above. Plants used to fulfill this requirement shall visually screen parking, loading and circulation areas from view from public streets. Paved area landscaping shall be installed and permanently maintained in conformity with the requirements of section 78-612.
(b)
For every 20 off-street parking stalls or 10,000 square feet of pavement (whichever yields the greater landscaping requirement) located in a development, the landscaping installed shall at a minimum meet the number of landscaping points specified in Table 78-604. The actual number of points required for such landscaping shall be computed on a prorated basis, and installed and maintained per the requirements of section 78-612.
(c)
A minimum of 30 percent of all points shall be devoted to climax or tall trees, or a combination of such trees, and a minimum of 40 percent of all points shall be devoted to shrubs.
(d)
Parking lot design shall employ interior landscaped islands with a minimum of 400 square feet at all parking aisle ends, and in addition shall provide a minimum of one landscaped island of a minimum of 400 square feet in each parking aisle for every 20 cars in that aisle. Aisle-end islands shall count toward meeting this requirement. Landscaped medians shall be used to break large parking areas into distinct pods, with a maximum of 100 spaces in any one pod.
(4)
Developed lots. As indicated in Table 78-604, lots developed after the effective date of this chapter must contain a minimum amount of landscaping.
(a)
Landscaping required by this section is most effective if located away from those areas required for landscaping such as building foundations, street frontages, paved areas, protected green space areas, reforestation areas, and bufferyards. See subsection 78-603(2) for a suggested landscaping scheme.
(b)
The number of landscaping points specified in Table 78-604 shall be provided on a prorated basis for every 1,000 square feet of gross floor area, and installed and maintained per the requirements of section 78-612.
(c)
The intent of this section is to provide yard shade and to require a visual screen of a minimum of six feet in height for all detached exterior appurtenances (such as HVAC, utility boxes, standpipes, stormwater discharge pipes and other pipes.)
Table 78-604: Landscaping Requirements for Regular Development
(Ord. No. 0-6-09, 6-23-2009; Memo. of 3-22-2010; Ord. No. 0-4-2011, § 110, 5-10-2011; Ord. No. 0-10-2012, § 2, 6-12-2012; Ord. No. 0-21-2024, § 1(Exh. A), 11-26-2024)
(1)
This section requires that each acre of other permanently protected green space after the effective date of this chapter be planted with a minimum amount of landscaping.
(2)
For every one acre of other permanently protected green space in a development, 200 landscaping points (as described in section 78-603) shall be provided. In addition, adequate ground cover shall be provided to stabilize the soil.
(Ord. No. 01-09, § 1, 3-17-2009; Memo. of 3-22-2010)
(1)
This section requires that each area required to be reforested, be reforested and maintained in a manner appropriate to site conditions.
(2)
A detailed reforestation plan shall be submitted by the property owner and approved by the city prior to clear cutting. This plan shall be reviewed by a reforestation consultant chosen by the city, with funding for consulting services provided by the petitioner to the city.
Rationale: The provisions of this Section are designed to ensure that reforestation efforts required as part of woodland disruption mitigation standards result in the thorough and reasonably rapid replacement of the important and varied environmental functions which woodlands provide.
(Ord. No. 0-6-09, 6-23-2009)
(1)
Purpose: This section provides the landscaping and width requirements for bufferyards on lots developed after the effective date of this chapter. A bufferyard is a combination of distance and a visual buffer or barrier. It includes an area, together with the combination of plantings, berms and fencing, that are required to eliminate or reduce existing or potential nuisances. These nuisances can often occur between adjacent zoning districts. Such nuisances are dirt, litter, noise, glare of lights, signs, and incompatible land uses, buildings or parking areas.
Rationale: One of zoning's most important functions is the separation of land uses into districts which have similar character and contain compatible uses. The location of districts is supposed to provide protection, but in the City of Stoughton, this is not the case since zoning districts permitting uses as diverse as single-family residential and industrial uses were located next to one another long before the effective date of this chapter. Bufferyards will operate to minimize the negative impact of any future use on neighboring uses.
(2)
Required locations for bufferyards: Bufferyards shall be located along (and within) the outer perimeter of a lot wherever two different zoning districts abut one another. Bufferyards shall not be required in front yards.
(3)
Determination of required bufferyard: The determination of bufferyard requirements is a two-staged process. First, the required level of bufferyard opacity is determined using Table 78-610(4)(a). Opacity is a quantitatively-derived measure which indicates the degree to which a particular bufferyard screens the adjoining property. The required level of opacity indicated by Table 78-610(4)(a) is directly related to the degree to which the potential character of development differs between different zoning districts. The provisions of this section indicate the minimum requirements for bufferyards located along zoning district boundaries.
(4)
Identification of required level of opacity: Table 78-610(4)(a) shall be used to determine the minimum level of opacity for the required bufferyard. The required level of opacity is determined by the value given in the cell of the table at which the column heading along the top row of the table (representing the subject property's zoning district) intersects with the row heading along the left hand side of the table (representing the adjacent property's zoning district). The value listed is the required level of opacity for the bufferyard on the subject property.
(5)
Identification of detailed bufferyard requirements:
(a)
If a proposed use adjoins a parcel for which a bufferyard is required by the presence of a zoning district boundary, that use shall provide a bufferyard with the level of the opacity indicated in Table 78-610(4)(a).
(b)
For each level of opacity listed in Table 78-610(4)(a), a wide variety of width, landscaping point, berm, and structure combinations are possible. These are listed in Table 78-610(4)(b). The requirements listed in Table 78-610(4)(b) pertain to the number of landscaping points, the minimum bufferyard width, and the type of berm or fencing required within every 100 feet of required bufferyard. A variety of landscaping point options are available and may be mixed within distinct portions of the same bufferyard. Section 78-603 describes the various available landscaping point alternatives. Section 78-611 provides a listing of tree and shrub species which correspond to the landscaping point descriptions.
(6)
Tables for required bufferyards: See following pages for Tables 78-610(4)(a) and (b).
(a)
Notes for Table 78-610(4)(a). For properties zoned in the rural holding district (RH), refer to the comprehensive plan's land use map to determine the proposed zoning district for said property. Bufferyard requirements shall be taken from this proposal.
Table 78-610(4)(a): Required Bufferyard Opacity Values
Table 78-610(4)(b) Detailed Bufferyard Requirements
*Fences contributing to landscaping requirements are not permitted along street frontages for nonresidential uses. Where used in combination with plant materials to meet bufferyard requirements, a minimum of 50% of all plant materials shall be located on the exterior side (the side away from the center of the subject property) of the fence. A building wall which does not contain doors (except those used for emergency exit) may be used to satisfy the required fence portions of the bufferyard requirements.
NOTE: Opacity standards provided courtesy of Lane Kendig, Inc.
(Ord. No. 0-6-09, 6-23-2009; Ord. No. 0-4-2011, §§ 104, 116, 124, 5-10-2011; Ord. No. 0-14-2012, § 1, 9-11-2012; Ord. No. 0-28-2013, § 1, 12-10-2013; Ord. No. 0-21-2024, § 1(Exh. A), 11-26-2024)
For the purpose of this chapter, plant materials are classified into 13 groupings: "Climax tree," "tall deciduous tree," "medium deciduous tree," "low deciduous tree," "tall evergreen tree," "medium evergreen tree," "low evergreen tree," "tall deciduous shrub," "medium deciduous shrub," "low deciduous shrub," "medium evergreen shrub," "low evergreen shrub," and non-contributory plants. Species suitable for landscaping use and compatible with Dane County climate and soil factors are listed in appendix B. The city forester and/or city tree commission shall review proposals for, and the applicability of, species not contained in this list and is authorized to approve appropriate similar species.
(Ord. No. 0-6-09, 6-23-2009; Ord. No. 0-1-2012, § 5, 1-24-2012; Ord. No. 0-10-2012, § 3, 6-12-2012; Ord. No. 0-9-2021, §§ 1, 2, 4-13-2021)
(1)
Installation.
(a)
Any and all landscaping and bufferyard material required by the provisions of this chapter shall be installed on the subject property, in accordance with the approved site plan (see section 78-908) within 365 days of the issuance of an occupancy permit for any building on the subject property, unless a conditional use is approved to allow for greater than 365 days.
(b)
If existing plant material meets the requirements of section 78-603 and will be preserved on the subject property following the completion of development, it may be counted as contributing to the landscaping requirements.
(c)
All landscaping and bufferyard areas shall be seeded with lawn or native ground cover unless such vegetation is already fully established.
(d)
The exact placement of plants and structures shall be depicted on the required detailed landscaping plan submitted to the city for its approval. Such plant and structure location shall be the decision of each property owner provided the following requirements are met:
1.
Evergreen shrubs shall be planted in clusters to maximize their chance for survival.
2.
Where a combination of plant materials, berming, and fencing is used in a bufferyard, the fence and/or berm shall be located toward the interior of the subject property and the plant material shall be located toward the exterior of the subject property.
3.
A property owner may establish through a written agreement, recorded with the register of deeds office, that an adjacent property owner agrees to provide on the immediately adjacent portion of his or her land a partial or full portion of the required bufferyard, thereby relieving the developer of the responsibility of providing the entire bufferyard on his property.
4.
Under no circumstance shall landscaping or bufferyard materials be selected or located in a manner resulting in the creation of a safety or visibility hazard.
5.
The restrictions on types of plants listed in this article shall apply.
(2)
Maintenance. The continual maintenance of all required landscaping and bufferyard materials shall be a requirement of this chapter and shall be the responsibility of the owner of the property on which said materials and plants are required. This requirement shall run with the property and shall be binding upon all future property owners. Development of any or all property following the effective date of this chapter shall constitute an agreement by the property owner to comply with the provisions of this section. If the property owner fails to comply with these provisions, the city may enter upon the property for the purpose of evaluating and maintaining all required landscaping and bufferyard materials, and may specially assess the costs thereof against the property. A property owner's failure to comply with this requirement shall also be considered a violation of this chapter, and shall be subject to any and all applicable enforcement procedures and penalties.
(3)
Use of required bufferyard and landscaped areas. Any and all required bufferyards or landscaped areas may be used for passive recreation activities. Said areas may contain pedestrian, bike or equestrian trails provided: no required material is eliminated; the total width of the required bufferyard, or the total area of required landscaping, is maintained; and all other regulations of this chapter are met. However, in such areas, no swimming pools, tennis courts, sports fields, golf courses, or other such similar active recreational uses. No parking and no outdoor display of storage of materials shall be permitted. Paving in such areas shall be limited to that required for necessary access to, through, or across the subject property.
(4)
Utility easements. Landscaping materials, fences and berms located within a duly recorded utility or a pedestrian easement shall not count toward meeting a landscaping requirement, unless authorized otherwise by a conditional use permit. However, the width of such areas may be counted as part of a landscaping requirement.
(Ord. No. 0-6-09, 6-23-2009; Ord. No. 0-1-14, § 1, 1-28-2014)
In calculating the number of required landscaping points under the provisions of this section, all areas and distances on which required calculations are based shall be rounded up to the nearest whole number of square feet or linear feet. Any partial plant derived from the required calculations of this section (for example 23.3 canopy trees) shall be rounded up to the nearest whole plant (24 canopy trees).
(Ord. No. 0-6-09, 6-23-2009)
Any and all proposed landscaping on the subject property, required to meet the standards of this chapter, shall be clearly depicted and labeled as to its location and make-up on the site plan required for the development of the subject property.
(Ord. No. 0-6-09, 6-23-2009)
LANDSCAPING AND BUFFERYARD REGULATIONS
The purpose of this article is to indicate the minimum requirements for the landscaping of foundations, developed lots, street frontages, paved areas, permanently protected green space areas, reforestation areas, and bufferyards.
(Ord. No. 0-6-09, 6-23-2009)
(1)
This article contains the standards which govern the amount, size, type, installation and maintenance of required landscaping. This article recognizes the important and diverse benefits which landscaping provides in terms of protecting the health, safety, and general welfare of the community, and implementing the comprehensive plan.
(2)
Each section of this article is oriented to a specific category of required landscaping. The landscaping requirements described in this article of the chapter are cumulative in nature and are required for all development, except single-family residential and agricultural uses, in the following locations: around building foundations, in developed lots, along street frontages, in or around paved areas, in permanently protected green space areas, in reforestation areas, and in bufferyards. Descriptions of these areas and their associated landscape requirements are included in Landscaping requirements for regular development (building foundation, developed lots, street frontages, paved areas) (section 78-604); Landscaping requirements for permanently protected green space areas (section 78-608); Landscaping requirements for reforestation (section 78-609); and Landscaping requirements for bufferyards (section 78-610).
(3)
In each instance, a "landscaping point" concept is used to provide a maximum amount of flexibility in terms of the selection of plant materials. Section 78-603 presents sample landscape point combination alternatives used by this chapter. At the end of this chapter (and in more detail in the Appendix on pages A-3 through A-28), Section 78-611 provides a listing of plant species fitting into the "climax tree", "tall deciduous tree", "medium deciduous tree", "low deciduous tree", "tall evergreen tree", "medium evergreen tree", "low evergreen tree", "tall deciduous shrub", "medium deciduous shrub", "low deciduous shrub", "medium evergreen shrub", "low evergreen shrub", and "non-contributory plants" used by this chapter. Section 78-612 provides requirements for the installation and maintenance of required landscaping, and section 78-613 describes the procedure for calculating landscaping requirements for this section.
(Ord. No. 0-6-09, 6-23-2009)
(1)
All landscaping requirements are stated in terms of the number of landscaping points required. The required number of landscaping points is dependent upon the type of land use, the zoning district, and the size of the development. A different number of points is awarded for each plant, depending upon its typical growth rate, its mature height, and whether it is a deciduous or evergreen species. A minimum installation size is required for each of these plant categories. These requirements are as follows:
Table 78-603: Landscaping Points and Minimum Installation Sizes
(2)
Landscaping points, measurements and sample landscaping layouts. Depiction of sample landscaping schemes, shown on the following pages, depicts sample landscaping schemes that may be used for building foundations, developed lots, street frontages, paved areas, reforestation, and bufferyards. In general, landscaping schemes similar to Alternative A are best for building foundations, landscaping schemes similar to Alternative B are best for developed lots, landscaping schemes similar to Alternative C are best for street frontages, landscaping schemes similar to Alternative D are best for paved areas (including parking lots, walkways and plazas), landscaping schemes similar to Alternative E are best for reforestation, and landscaping schemes similar to Alternative F are best for bufferyards. A detailed listing of which plant species fit each plant type is provided in appendix B.
Alternative A
Alternative B
Alternative C
Alternative D
Alternative E
Alternative F
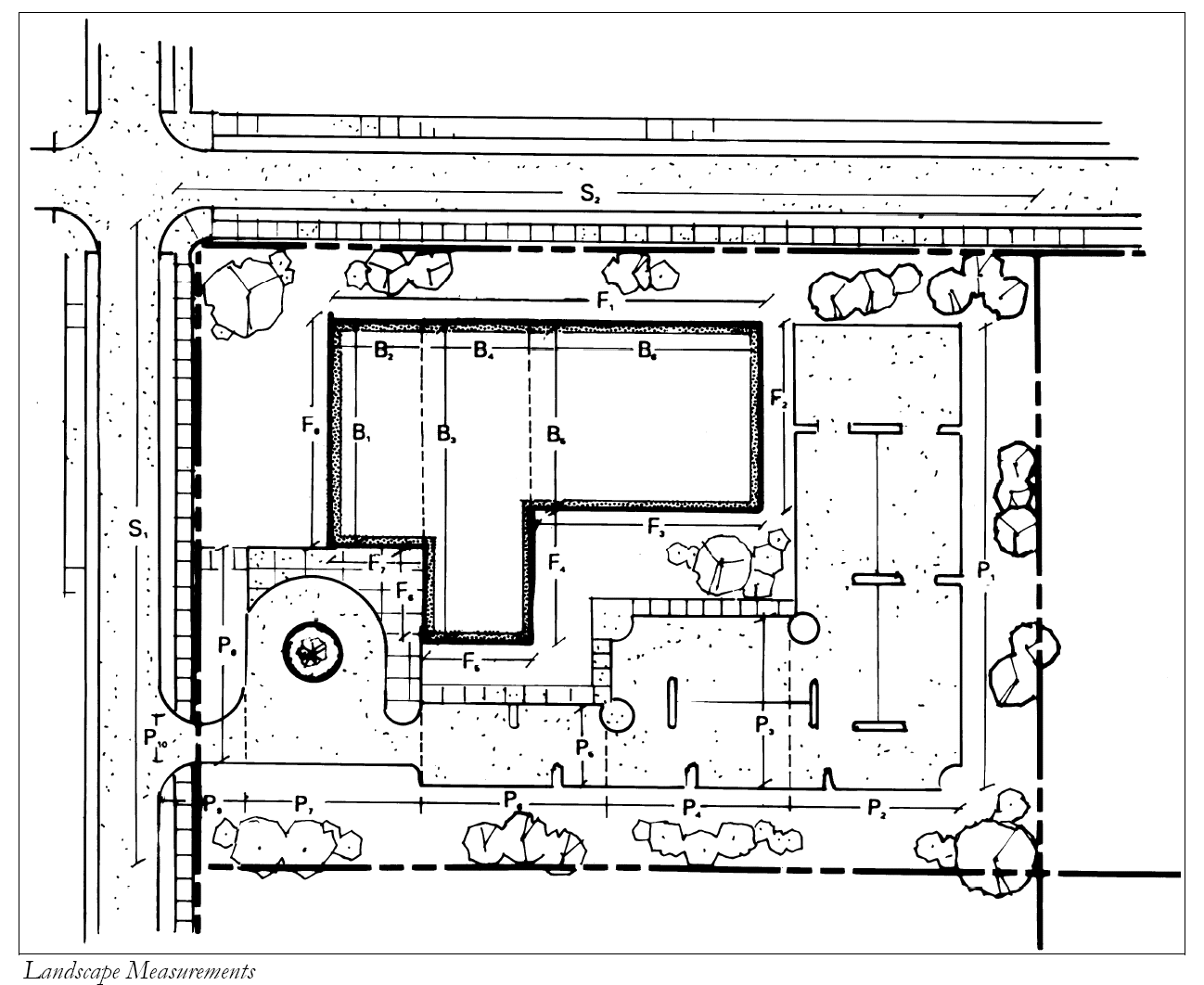
(3)
Measurement for landscaping requirements: A minimum amount of landscaping points, based upon the zoning district, is required for:
(a)
The linear feet building foundations.
(b)
The gross floor area of buildings on developed lots.
(c)
The linear feet of street frontage, and.
(d)
The total combined area of paved areas.
The following diagram illustrates the measurement techniques used to determine these requirements:
Landscaping Calculation Equations for this Example:
Paved area = (P1 × P2) + (P3 × P4) + (P5 × P6) + (P7 × P8) + (P9 × P10)
Street frontage = S1 + S2
Building perimeter = F1 + F2 + F3 + F4 + F5 + F6 + F7 + F8
Building floor area = (B1 × B2) + (B3 × B4) + (B5 × B6)
(Ord. No. 0-6-09, 6-23-2009; Memo. of 3-22-2010; Ord. No. 0-10-2012, § 1, 6-12-2012)
Landscaping is not required for single-family (subsection 78-206(1)), or Agricultural (subsection 78-206(2)) land uses).
(1)
Building foundations. As indicated in Table 78-604, certain buildings or building additions constructed after the effective date of this chapter are required to be accented by a minimum amount of landscaping placed near the building foundation.
(a)
Foundation landscaping shall be placed so that at maturity, the plant's drip line is located within ten feet of the building foundation. Such landscaping shall not be located in those areas required for landscaping as street frontages, paved areas, protected green space areas, reforestation areas, or bufferyards. Foundation landscaping shall be installed and permanently maintained in conformity with the requirements of section 78-612.
(b)
For each 100 feet of building foundation perimeter, the landscaping installed shall at a minimum meet the number of landscaping points specified in Table 78-604. The actual number of points required for such landscaping shall be computed on a prorated basis, and installed and permanently maintained per the requirements of section 78-612.
(c)
Climax trees and tall trees shall not be used to meet the foundation landscaping requirement. The intent of this section is to require a visual break in the mass of buildings and to require a visual screen of a minimum of six feet in height for all exterior perimeter appurtenances (such as HVAC/utility boxes, standpipes, stormwater discharge pipes and other pipes).
(d)
If the officially approved site plan depicts a future building extension, the foundation landscaping requirement shall be calculated by measuring the length of the total perimeter. However, foundation plantings need only be installed based on the landscape points calculated from the portions of the building perimeter that will not be affected by building extension. If this results in a point requirement not met by the initial planting, then the requirement shall be met within five years after the issuance of the building permit, or within such larger time period as established in writing by the plan commission.
(2)
Street frontages. As indicated in Table 78-604, street frontages on certain lots developed after the effective date of this chapter contain a minimum amount of landscaping in those areas abutting the right-of-way of a public street.
(a)
All landscaping used to meet street frontage requirements shall be located within ten feet of the public right-of-way. Under no circumstances shall such landscaping be located within a public right-of-way. Landscaping shall not impede vehicle or pedestrian visibility, and shall be installed and permanently maintained in conformity with the requirements of section 78-612.
(b)
For every 100 linear feet of street frontage of a developed lot abutting a public street right-of-way, the landscape installed shall at a minimum meet the number of landscaping points specified in Table 78.604. The actual number of points required for such landscaping shall be computed on a prorated basis, and installed and maintained per the requirements of section 78-612.
(c)
Shrubs shall not be used to meet street frontage landscaping requirements. A minimum of 50 percent of all points shall be devoted to climax or tall trees, or a combination of such trees, and a minimum of 30 percent of all points shall be devoted to medium trees.
(3)
Paved areas. As indicated in Table 78-604, paved areas on certain lots developed after the effective date of this chapter must contain a minimum amount of landscaping within, or within ten feet of, the paved area. The intent is to require a continuous visual screen of parking areas from public rights-of-way at a minimum height of 40 inches.
(a)
A minimum of 360 square feet of landscaped area, which shall be located within ten feet of the paved area, is required for the placement of every 100 paved area landscaping points. Said area does not have to be provided in one contiguous area. Sample configurations are depicted in section 78-603, above. Plants used to fulfill this requirement shall visually screen parking, loading and circulation areas from view from public streets. Paved area landscaping shall be installed and permanently maintained in conformity with the requirements of section 78-612.
(b)
For every 20 off-street parking stalls or 10,000 square feet of pavement (whichever yields the greater landscaping requirement) located in a development, the landscaping installed shall at a minimum meet the number of landscaping points specified in Table 78-604. The actual number of points required for such landscaping shall be computed on a prorated basis, and installed and maintained per the requirements of section 78-612.
(c)
A minimum of 30 percent of all points shall be devoted to climax or tall trees, or a combination of such trees, and a minimum of 40 percent of all points shall be devoted to shrubs.
(d)
Parking lot design shall employ interior landscaped islands with a minimum of 400 square feet at all parking aisle ends, and in addition shall provide a minimum of one landscaped island of a minimum of 400 square feet in each parking aisle for every 20 cars in that aisle. Aisle-end islands shall count toward meeting this requirement. Landscaped medians shall be used to break large parking areas into distinct pods, with a maximum of 100 spaces in any one pod.
(4)
Developed lots. As indicated in Table 78-604, lots developed after the effective date of this chapter must contain a minimum amount of landscaping.
(a)
Landscaping required by this section is most effective if located away from those areas required for landscaping such as building foundations, street frontages, paved areas, protected green space areas, reforestation areas, and bufferyards. See subsection 78-603(2) for a suggested landscaping scheme.
(b)
The number of landscaping points specified in Table 78-604 shall be provided on a prorated basis for every 1,000 square feet of gross floor area, and installed and maintained per the requirements of section 78-612.
(c)
The intent of this section is to provide yard shade and to require a visual screen of a minimum of six feet in height for all detached exterior appurtenances (such as HVAC, utility boxes, standpipes, stormwater discharge pipes and other pipes.)
Table 78-604: Landscaping Requirements for Regular Development
(Ord. No. 0-6-09, 6-23-2009; Memo. of 3-22-2010; Ord. No. 0-4-2011, § 110, 5-10-2011; Ord. No. 0-10-2012, § 2, 6-12-2012; Ord. No. 0-21-2024, § 1(Exh. A), 11-26-2024)
(1)
This section requires that each acre of other permanently protected green space after the effective date of this chapter be planted with a minimum amount of landscaping.
(2)
For every one acre of other permanently protected green space in a development, 200 landscaping points (as described in section 78-603) shall be provided. In addition, adequate ground cover shall be provided to stabilize the soil.
(Ord. No. 01-09, § 1, 3-17-2009; Memo. of 3-22-2010)
(1)
This section requires that each area required to be reforested, be reforested and maintained in a manner appropriate to site conditions.
(2)
A detailed reforestation plan shall be submitted by the property owner and approved by the city prior to clear cutting. This plan shall be reviewed by a reforestation consultant chosen by the city, with funding for consulting services provided by the petitioner to the city.
Rationale: The provisions of this Section are designed to ensure that reforestation efforts required as part of woodland disruption mitigation standards result in the thorough and reasonably rapid replacement of the important and varied environmental functions which woodlands provide.
(Ord. No. 0-6-09, 6-23-2009)
(1)
Purpose: This section provides the landscaping and width requirements for bufferyards on lots developed after the effective date of this chapter. A bufferyard is a combination of distance and a visual buffer or barrier. It includes an area, together with the combination of plantings, berms and fencing, that are required to eliminate or reduce existing or potential nuisances. These nuisances can often occur between adjacent zoning districts. Such nuisances are dirt, litter, noise, glare of lights, signs, and incompatible land uses, buildings or parking areas.
Rationale: One of zoning's most important functions is the separation of land uses into districts which have similar character and contain compatible uses. The location of districts is supposed to provide protection, but in the City of Stoughton, this is not the case since zoning districts permitting uses as diverse as single-family residential and industrial uses were located next to one another long before the effective date of this chapter. Bufferyards will operate to minimize the negative impact of any future use on neighboring uses.
(2)
Required locations for bufferyards: Bufferyards shall be located along (and within) the outer perimeter of a lot wherever two different zoning districts abut one another. Bufferyards shall not be required in front yards.
(3)
Determination of required bufferyard: The determination of bufferyard requirements is a two-staged process. First, the required level of bufferyard opacity is determined using Table 78-610(4)(a). Opacity is a quantitatively-derived measure which indicates the degree to which a particular bufferyard screens the adjoining property. The required level of opacity indicated by Table 78-610(4)(a) is directly related to the degree to which the potential character of development differs between different zoning districts. The provisions of this section indicate the minimum requirements for bufferyards located along zoning district boundaries.
(4)
Identification of required level of opacity: Table 78-610(4)(a) shall be used to determine the minimum level of opacity for the required bufferyard. The required level of opacity is determined by the value given in the cell of the table at which the column heading along the top row of the table (representing the subject property's zoning district) intersects with the row heading along the left hand side of the table (representing the adjacent property's zoning district). The value listed is the required level of opacity for the bufferyard on the subject property.
(5)
Identification of detailed bufferyard requirements:
(a)
If a proposed use adjoins a parcel for which a bufferyard is required by the presence of a zoning district boundary, that use shall provide a bufferyard with the level of the opacity indicated in Table 78-610(4)(a).
(b)
For each level of opacity listed in Table 78-610(4)(a), a wide variety of width, landscaping point, berm, and structure combinations are possible. These are listed in Table 78-610(4)(b). The requirements listed in Table 78-610(4)(b) pertain to the number of landscaping points, the minimum bufferyard width, and the type of berm or fencing required within every 100 feet of required bufferyard. A variety of landscaping point options are available and may be mixed within distinct portions of the same bufferyard. Section 78-603 describes the various available landscaping point alternatives. Section 78-611 provides a listing of tree and shrub species which correspond to the landscaping point descriptions.
(6)
Tables for required bufferyards: See following pages for Tables 78-610(4)(a) and (b).
(a)
Notes for Table 78-610(4)(a). For properties zoned in the rural holding district (RH), refer to the comprehensive plan's land use map to determine the proposed zoning district for said property. Bufferyard requirements shall be taken from this proposal.
Table 78-610(4)(a): Required Bufferyard Opacity Values
Table 78-610(4)(b) Detailed Bufferyard Requirements
*Fences contributing to landscaping requirements are not permitted along street frontages for nonresidential uses. Where used in combination with plant materials to meet bufferyard requirements, a minimum of 50% of all plant materials shall be located on the exterior side (the side away from the center of the subject property) of the fence. A building wall which does not contain doors (except those used for emergency exit) may be used to satisfy the required fence portions of the bufferyard requirements.
NOTE: Opacity standards provided courtesy of Lane Kendig, Inc.
(Ord. No. 0-6-09, 6-23-2009; Ord. No. 0-4-2011, §§ 104, 116, 124, 5-10-2011; Ord. No. 0-14-2012, § 1, 9-11-2012; Ord. No. 0-28-2013, § 1, 12-10-2013; Ord. No. 0-21-2024, § 1(Exh. A), 11-26-2024)
For the purpose of this chapter, plant materials are classified into 13 groupings: "Climax tree," "tall deciduous tree," "medium deciduous tree," "low deciduous tree," "tall evergreen tree," "medium evergreen tree," "low evergreen tree," "tall deciduous shrub," "medium deciduous shrub," "low deciduous shrub," "medium evergreen shrub," "low evergreen shrub," and non-contributory plants. Species suitable for landscaping use and compatible with Dane County climate and soil factors are listed in appendix B. The city forester and/or city tree commission shall review proposals for, and the applicability of, species not contained in this list and is authorized to approve appropriate similar species.
(Ord. No. 0-6-09, 6-23-2009; Ord. No. 0-1-2012, § 5, 1-24-2012; Ord. No. 0-10-2012, § 3, 6-12-2012; Ord. No. 0-9-2021, §§ 1, 2, 4-13-2021)
(1)
Installation.
(a)
Any and all landscaping and bufferyard material required by the provisions of this chapter shall be installed on the subject property, in accordance with the approved site plan (see section 78-908) within 365 days of the issuance of an occupancy permit for any building on the subject property, unless a conditional use is approved to allow for greater than 365 days.
(b)
If existing plant material meets the requirements of section 78-603 and will be preserved on the subject property following the completion of development, it may be counted as contributing to the landscaping requirements.
(c)
All landscaping and bufferyard areas shall be seeded with lawn or native ground cover unless such vegetation is already fully established.
(d)
The exact placement of plants and structures shall be depicted on the required detailed landscaping plan submitted to the city for its approval. Such plant and structure location shall be the decision of each property owner provided the following requirements are met:
1.
Evergreen shrubs shall be planted in clusters to maximize their chance for survival.
2.
Where a combination of plant materials, berming, and fencing is used in a bufferyard, the fence and/or berm shall be located toward the interior of the subject property and the plant material shall be located toward the exterior of the subject property.
3.
A property owner may establish through a written agreement, recorded with the register of deeds office, that an adjacent property owner agrees to provide on the immediately adjacent portion of his or her land a partial or full portion of the required bufferyard, thereby relieving the developer of the responsibility of providing the entire bufferyard on his property.
4.
Under no circumstance shall landscaping or bufferyard materials be selected or located in a manner resulting in the creation of a safety or visibility hazard.
5.
The restrictions on types of plants listed in this article shall apply.
(2)
Maintenance. The continual maintenance of all required landscaping and bufferyard materials shall be a requirement of this chapter and shall be the responsibility of the owner of the property on which said materials and plants are required. This requirement shall run with the property and shall be binding upon all future property owners. Development of any or all property following the effective date of this chapter shall constitute an agreement by the property owner to comply with the provisions of this section. If the property owner fails to comply with these provisions, the city may enter upon the property for the purpose of evaluating and maintaining all required landscaping and bufferyard materials, and may specially assess the costs thereof against the property. A property owner's failure to comply with this requirement shall also be considered a violation of this chapter, and shall be subject to any and all applicable enforcement procedures and penalties.
(3)
Use of required bufferyard and landscaped areas. Any and all required bufferyards or landscaped areas may be used for passive recreation activities. Said areas may contain pedestrian, bike or equestrian trails provided: no required material is eliminated; the total width of the required bufferyard, or the total area of required landscaping, is maintained; and all other regulations of this chapter are met. However, in such areas, no swimming pools, tennis courts, sports fields, golf courses, or other such similar active recreational uses. No parking and no outdoor display of storage of materials shall be permitted. Paving in such areas shall be limited to that required for necessary access to, through, or across the subject property.
(4)
Utility easements. Landscaping materials, fences and berms located within a duly recorded utility or a pedestrian easement shall not count toward meeting a landscaping requirement, unless authorized otherwise by a conditional use permit. However, the width of such areas may be counted as part of a landscaping requirement.
(Ord. No. 0-6-09, 6-23-2009; Ord. No. 0-1-14, § 1, 1-28-2014)
In calculating the number of required landscaping points under the provisions of this section, all areas and distances on which required calculations are based shall be rounded up to the nearest whole number of square feet or linear feet. Any partial plant derived from the required calculations of this section (for example 23.3 canopy trees) shall be rounded up to the nearest whole plant (24 canopy trees).
(Ord. No. 0-6-09, 6-23-2009)
Any and all proposed landscaping on the subject property, required to meet the standards of this chapter, shall be clearly depicted and labeled as to its location and make-up on the site plan required for the development of the subject property.
(Ord. No. 0-6-09, 6-23-2009)